Theme Park &
Attraction
Experience
Walter Bone, RLA
Area Development Manager
Landscape Architect
Dubai Parks and Resorts
Dubai, United Arab Emirates – Phase 1
Area Development Manager for Motiongate Zone 5 and Legoland Water Park. Services
also included closing out all of Phase 1 Motiongate and Bollywood theme parks.
LIONSGATE-ZONE 5
Motiongate Theme Park, Dubai
Walter Bone, RLA
Area Development Manager
Design and Construction
The Hunger Games Experience is located in the Zone 5 expansion area of Motiongate Theme Park at Dubai Parks and Resorts
(DPR). Zone 5 provides 2 major attractions, The Capital Bullet Train Launch Coaster and The Panem Train simulator. We worked
with Rob Moffat at ima design on the initial design and progressed through the final design with the DPR Creative Team.
The project consisted of themed imagery and materials and the requirement to meet these themed creations with local materials
in both hard and softscape selections. Show props and statuary were designed by both Falcons’ Treehouse and Paragon Creative.
The DXB Senior Manager - Show Production Character Theme Painting, Molly Beckingham, was especially wonderful to work with.
Her years of experience with Disney and DXB provided great insight and leadership to this iconic project. Others critical to the
success of the Hunger Games included Sean McMahon, General Superintendent, Sarah Gibbon, Vice President Show Design and
Production, Phil Ogden, Director of Delivery Management, Matthew Lang, Area Development Manager for DXB and Tamer
Ibrahim, Senior Site Engineer for DEC Dynamic Engineering Consultants.
Selecting softscape species was a bit tricky. The on-site nursery setup at the beginning of DPR, had few materials available due to
Zone 5 being the last project during Phase 1 of DPR. Changes in species to be more in line with the theming were completed and
the end result was spectacular.
Themed paving consisting of stamped and stained concrete that adorned Zone 5 from wall to wall replicating the scenes in all of
the Hunger Games movies. Themed wall plastering, gates, railings, etc. also complimented and supported the overall theming
and allowing the park guests to be totally immersed into the Hunger Games Experience.
PEACEKEEPERS
MOCKINGJAY = MOCKINGBIRD + JABBERJAY mix…..
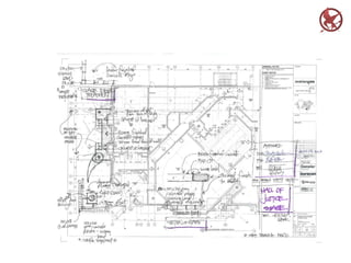
Overflow Queue Line Demarcation
February 26, 2017
Note door widths and allow for post
and rope clearance.
Note door widths and allow for post
and rope clearance.
Trash bins are portable, do not take
in to account for queue line
arrangement. Operations will
relocate.
Maintain consistent 900 clearance
widths for each queue line. Take in
to account fan posts, GRC theming
rockwork. Measure from outer edge
of any obstruction.
Maintain guest circulation when
demarcating the queues.
Two (2) queue lines with switchback
around the corner. Do not locate
posts blocking theme work.
February 26, 2017
Ensure all posts bases are countersunk
and flush with the pavement. Uneven
pavement surfaces shall be ground
down flush.
Maintain consistent queue edging.
No sharp zigzags and all posts are to
be plumb vertical. Do not angle
bases/posts with pavement surface.
D-Ring hooks permitted to be
attached to fan/light posts, minimizing
use of rail posts. Minimize scratches
and damage to post finishes
Posts and rope not required along
planter or walls. Maintain clearance
@ switchback from BOH
maintenance gate and start queue
at lamp post +/-.
February 26, 2017
Add 2 posts and rope @ entrance to
visually block entry.
Posts to be located adjacent to
curbing, in line with fence posts.
Survey and locate all planter pist
and locate posts a minimum of
150mm from opening and center.
2 queue lines fit between each planter
pit, maintain 900mm clearance/ea line.
Measure from outermost point of any
obstruction. Posts and rails are not
required along edges of fenced
planters.
Ditto, note no rail along fenced
planters and softscape median of
round planters.
Maintain door clearances
NOTE:
It is anticipated that the queue quantities
may be reduced slightly, important to
maintain queue width consistency and
access for Fast Pass holders.
February 26, 2017
Ample room in front, but maintain
clearances for ride exiters, Game
players and washroom visitors.
Note door widths and allow for post
and rope clearance.
Sign fixed, align queue line on outer
edges of any protrusions.
Take in to account the door
opening. Wrap queue around
signage and columns. Locate via
survey all fixed elements. Red paint
on door is themed, don’t be scared.
Double queue line between column
and wall. D-Ring hooks permitted on
columns. Operations will relocated
trash bin. Containment exposed
under trash bin, to be fixed prior to
finalizing queue rail installation.
Two (2) queue lines with switchback
around the corner. Do not locate
posts blocking them work. Note
door opening and requirement to
wrap around.
February 26, 2017
GameGame
Wash
room
Ride queue
Maintain ingress/egress clearances to
sidewalk café.
No queue rail needed along building.
Maintain clearance on outside for
passersby. Stop switchback in alignment
with tree grate +/-.
Fan posts to be reinstalled where base
is flush with pavement. Again, all posts
to be vertical and plumb. Do not align
base with pavement slope.
D-Ring hooks on fan posts. Do not
locate posts in front of show props to
prevent photo opps.
February 26, 2017
Maintain clearance for measuring or
height stick. Pull post and rope
behind the downspout and come
out perpendicular to building face.
Operations to confirm D-Ring hook
on building face.
Queue breaks to be
in alignment with
fan posts. D-Ring
hooks permissible
on fan posts.
Ocean Park – Whiskers Harbour
Hong Kong
Role: Preparation of Concept design through Schematic, client meetings and
presentations. Directed and coordinated staff in plan preparations.
ADLABS - Imajica
Mumbai, India
Role: Assisted in the preparation of revised construction documentation, and
presentation materials. Directed staff in plan preparations.
Phase 1, Grand Opening April 2013
Afrikana
Restaurant
Theme Park & Attraction Experience
Theme Park & Attraction Experience

Theme Park & Attraction Experience

  • 1.
    Theme Park & Attraction Experience WalterBone, RLA Area Development Manager Landscape Architect
  • 2.
    Dubai Parks andResorts Dubai, United Arab Emirates – Phase 1 Area Development Manager for Motiongate Zone 5 and Legoland Water Park. Services also included closing out all of Phase 1 Motiongate and Bollywood theme parks.
  • 6.
    LIONSGATE-ZONE 5 Motiongate ThemePark, Dubai Walter Bone, RLA Area Development Manager Design and Construction
  • 7.
    The Hunger GamesExperience is located in the Zone 5 expansion area of Motiongate Theme Park at Dubai Parks and Resorts (DPR). Zone 5 provides 2 major attractions, The Capital Bullet Train Launch Coaster and The Panem Train simulator. We worked with Rob Moffat at ima design on the initial design and progressed through the final design with the DPR Creative Team. The project consisted of themed imagery and materials and the requirement to meet these themed creations with local materials in both hard and softscape selections. Show props and statuary were designed by both Falcons’ Treehouse and Paragon Creative. The DXB Senior Manager - Show Production Character Theme Painting, Molly Beckingham, was especially wonderful to work with. Her years of experience with Disney and DXB provided great insight and leadership to this iconic project. Others critical to the success of the Hunger Games included Sean McMahon, General Superintendent, Sarah Gibbon, Vice President Show Design and Production, Phil Ogden, Director of Delivery Management, Matthew Lang, Area Development Manager for DXB and Tamer Ibrahim, Senior Site Engineer for DEC Dynamic Engineering Consultants. Selecting softscape species was a bit tricky. The on-site nursery setup at the beginning of DPR, had few materials available due to Zone 5 being the last project during Phase 1 of DPR. Changes in species to be more in line with the theming were completed and the end result was spectacular. Themed paving consisting of stamped and stained concrete that adorned Zone 5 from wall to wall replicating the scenes in all of the Hunger Games movies. Themed wall plastering, gates, railings, etc. also complimented and supported the overall theming and allowing the park guests to be totally immersed into the Hunger Games Experience.
  • 36.
  • 37.
    MOCKINGJAY = MOCKINGBIRD+ JABBERJAY mix…..
  • 44.
    Overflow Queue LineDemarcation February 26, 2017
  • 45.
    Note door widthsand allow for post and rope clearance. Note door widths and allow for post and rope clearance. Trash bins are portable, do not take in to account for queue line arrangement. Operations will relocate. Maintain consistent 900 clearance widths for each queue line. Take in to account fan posts, GRC theming rockwork. Measure from outer edge of any obstruction. Maintain guest circulation when demarcating the queues. Two (2) queue lines with switchback around the corner. Do not locate posts blocking theme work. February 26, 2017
  • 46.
    Ensure all postsbases are countersunk and flush with the pavement. Uneven pavement surfaces shall be ground down flush. Maintain consistent queue edging. No sharp zigzags and all posts are to be plumb vertical. Do not angle bases/posts with pavement surface. D-Ring hooks permitted to be attached to fan/light posts, minimizing use of rail posts. Minimize scratches and damage to post finishes Posts and rope not required along planter or walls. Maintain clearance @ switchback from BOH maintenance gate and start queue at lamp post +/-. February 26, 2017
  • 47.
    Add 2 postsand rope @ entrance to visually block entry. Posts to be located adjacent to curbing, in line with fence posts. Survey and locate all planter pist and locate posts a minimum of 150mm from opening and center. 2 queue lines fit between each planter pit, maintain 900mm clearance/ea line. Measure from outermost point of any obstruction. Posts and rails are not required along edges of fenced planters. Ditto, note no rail along fenced planters and softscape median of round planters. Maintain door clearances NOTE: It is anticipated that the queue quantities may be reduced slightly, important to maintain queue width consistency and access for Fast Pass holders. February 26, 2017
  • 48.
    Ample room infront, but maintain clearances for ride exiters, Game players and washroom visitors. Note door widths and allow for post and rope clearance. Sign fixed, align queue line on outer edges of any protrusions. Take in to account the door opening. Wrap queue around signage and columns. Locate via survey all fixed elements. Red paint on door is themed, don’t be scared. Double queue line between column and wall. D-Ring hooks permitted on columns. Operations will relocated trash bin. Containment exposed under trash bin, to be fixed prior to finalizing queue rail installation. Two (2) queue lines with switchback around the corner. Do not locate posts blocking them work. Note door opening and requirement to wrap around. February 26, 2017 GameGame Wash room Ride queue
  • 49.
    Maintain ingress/egress clearancesto sidewalk café. No queue rail needed along building. Maintain clearance on outside for passersby. Stop switchback in alignment with tree grate +/-. Fan posts to be reinstalled where base is flush with pavement. Again, all posts to be vertical and plumb. Do not align base with pavement slope. D-Ring hooks on fan posts. Do not locate posts in front of show props to prevent photo opps. February 26, 2017 Maintain clearance for measuring or height stick. Pull post and rope behind the downspout and come out perpendicular to building face. Operations to confirm D-Ring hook on building face. Queue breaks to be in alignment with fan posts. D-Ring hooks permissible on fan posts.
  • 50.
    Ocean Park –Whiskers Harbour Hong Kong Role: Preparation of Concept design through Schematic, client meetings and presentations. Directed and coordinated staff in plan preparations.
  • 63.
    ADLABS - Imajica Mumbai,India Role: Assisted in the preparation of revised construction documentation, and presentation materials. Directed staff in plan preparations.
  • 64.
    Phase 1, GrandOpening April 2013
  • 69.