‫كلية العلوم واهلندسة‬
   ‫قسن العمارة‬




                                                            ‫• إشراف:‬                                                  ‫• إعداد الطالب:‬
                       ‫د/ سمٌر السـ ـ ـ ـ ـ ـ ـ ـ ـ ـ ـ ـ ـ ــري‬       ‫اًمن عبدهللا ب ـ ـ ــشر‬               ‫طه حسٌـ ـ ـ ـ ــن ؾروان‬
                       ‫م/ موٌؽ شمس الدًن‬                               ‫عبدالرحمن القدسي‬                      ‫ضٌؽ هللا الشـ ــرًؽ‬
                       ‫م/ محمد ع ـ ـ ـ ـ ـ ـ ـ ـ ـ ـ ـ ـ ــواس‬         ‫احمـ ــد عـ ـ ـ ـ ـ ـ ـ ـ ـ ـ ــواس‬   ‫دال ـ ـ ـ ـ ـ ـ ـ ـ ـ ـ ــد سٌالن‬
                                                                       ‫عبـ ـ ـ ـ ـ ــدالؼوي الٌتٌم‬            ‫المٌن عبدهللا قاًد‬
‫مقدمة‬
‫‪ ‬اٖتِ اإلْطإ َٓر ايكدّ بتبادٍ ايطًع ٚأختاز ايطاحات ايعاَ١ املسنصٜ١ ٚاملؿتٛح١ أحٝاْاً‬
 ‫هلرٙ ايػاٜ١ ٚعً٢ َس ايعضٛز أخرت ٖرٙ ايطاحات تصداد أُٖٝ١ ٚقد ٚصًت يف ايٛقت‬
 ‫اذتاعس إىل إٔ تهٕٛ َٔ أِٖ املٛاعع اٖتُاَا حٝح ناْت ٖرٙ ايطاحات يف َسانص املدٕ‬
 ‫عً٢ األغًب ٚمل تبك٢ ٖرٙ ايطاحات زتسد أَهٓ٘ يتبادٍ املٛاد ٚايطًع بٌ أخرت طابع‬
 ‫آخس ٖٛ ايطابع ارتدَٞ ٚايرتؾٝٗٞ. ٚيكد ْظُت ٖرٙ األضٛام بػهٌ ٜؤدٟ ايٛظٝؿ١ ٚاملتع١‬
 ‫ٚايتطًٝ١ َعاً . ٚٚدد إٔ اضتعُاٍ ٖرٙ األَانٔ (املسانص) َٜٛٞ ٚدا٥ِ . ٜٚكغٞ ؾٝٗا ايٓاع‬
 ‫ؾرت٠ َٔ ٚقتِٗ َٚٔ ٖٓا دا٤ت أُٖٝ١ ٖرٙ املسانص اييت تًعب ؾٝٗا ايتذاز٠ ايدٚز األنرب‬
 ‫ْٚتٝذ١ يًُٓٛ املتصاٜد ٚايتطٛز ايطسٜع ٚايتٛضع ايطسٜع يف َدٜٓ١ صٓعا٤ ؾإٕ املتطًبات تصداد‬
             ‫باعطساد مما ٜٛدب تصٜٚد املدٜٓ١ مبسانص تكًٌ َٔ ايعب٤ ايتخدميٞ ملسانص املدٜٓ١ .‬
‫أهمية املشروع‬
‫‪ْ ‬ظسا يًُػانٌ اييت تعاْ٢ َٓٗا املدٕ يف ْكط ارتدَات ايغسٚزٜ١ يف تٓظِٝ غؤٕٚ‬
‫اإلْطإ مما ٜعط٢ ذيو إىل تؿهو ٚععـ املدٜٓ١ نٕٛ اإلْطإ ٖٛ ايداؾع ايكٛ٣ يف زؾع‬
                             ‫غؤْ٘ َٔ مجٝع ايٓٛاحٞ ايبازش٠ هلا؛ ٚيٝظ هلا ٚدٛد.‬

‫‪ َٔٚ ‬ذيو املٓطًل ٚدب تٛؾس َبٓ٢ جتاز٣ ضهٓ٢ إداز٣ يف َدٜٓ١ صٓعا٤ ملا يف ذيو‬
‫َٔ دٚز بازش يف زؾع مجٝع ارتدَات ايغسٚزٜ١ عٝح حيكل األدا٤ ادتٝد ملا ؾٝ٘ صاحل‬
                                                             ‫املٛاطٔ ٚايدٚي١.‬

‫‪ْٚ ‬تٝذ١ ألُٖٝ١ ٖرا املػسٚع يف احتالٍ دٚز ٚزَص بازش يف َدٜٓ١ صٓعا٤ جيب تٛؾس‬
                                 ‫املالَح ٚاملؿسدات املعُازٜ١ ادتًُٝ١ هلرا املعٓ٢ .‬
‫األهداف‬
                                                                                      ‫األٖداف ايعاَ١ :‬      ‫‪‬‬
                                                                    ‫1ـ ضٗٛي١ تكدِٜ ارتدَات يًُٛاطٓني.‬
                    ‫2ـ ضٗٛي١ املتابع١ ٚاألغساف ايؿعًٞ عً٢ مجٝع املهاتب يتخطني اإلداز٠ ٚتطٜٛسٖا .‬
                                      ‫3ـ شٜاد٠ ٚحتطني األدا٤ ايٛظٝؿٞ يًعاًَني ٚذيو رتدَ١ املٛاطٓني .‬
‫4ـ ٚدٛد َبٓ٢ َتهاٌَ بايطساش املعُازٟ ايُٝٓ٢ املتُٝص ايرٟ ضٝعط٢ زٚحا ٚطابعا َعُازٜا حغازٜا َتُٝصا‬
                                                                                                ‫يًُدٜٓ١ .‬
                                                  ‫5ـ تٛؾري ايساح١ ايهاًَ١ يًُٛظؿني يف األبساج اإلدازٜ١ .‬
                                                   ‫6ـ تٛؾري ايساح١ ايٓؿطٝ١ يًطانٓني يف األبساج ايطهٓٝ١ .‬
                                         ‫7ـ حتكٝل ايهؿا٤٠ االقتضادٜ١ ٚذيو باالضتػالٍ ادتٝد يألدٚاز .‬

                                                                                 ‫األٖداف ارتاص١ :‬           ‫‪‬‬
             ‫1ـ املػازن١ يف إعاؾ١ دزاض١ ددٜد٠ يًُهتب١ حت٢ ٜطتؿٝد َٓٗا ايطالب يف املساحٌ األخس٣ .‬
                                                ‫2ـ تكدِٜ منٛذج ؾعً٢ ميهٔ إٕ ٜطبل يف ازض ايٛاقع .‬
                                                 ‫3ـ اإلضٗاّ يف يؿت ْظس ايدٚي١ يألُٖٝ١ ٖرا املػسٚع.‬
                                                          ‫4ـ شٜاد٠ املعًَٛات يف تضُِٝ ٖرا املػسٚع.‬
                       ‫5ـ اإلملاّ ظٛاْب ٖرا املػسٚع ٚاضتهُاٍ دٛاْب ايتكضري يف املػازٜع األخس٣.‬
‫انباب األول‬
          ‫انذراسة انتحهيهية نهمىقع‬
‫(ادلىقع – ادلساحة – اجملاورات – ادلذاخم – احلركة – انضىضاء)‬
‫أٚ ً: ِٛلغ اٌّششٚع :‬
                               ‫ال‬
‫ٜكع املػـسٚع يف ايعاصـُ١ ايُٝٓٝـ١ صـٓعا٤ يف‬            ‫‪‬‬
‫ادتٗــ١ ادتٓٛبٝــ١ ايػسبٝــ١ َٓٗــاد يف حــٞ حــد٠‬
‫املدٜٓــ١د اذتــٞ ايؿًطــطٝا ضــابكاًد دٓــٛبٞ‬
‫غازع دَػـل ايتذـازٟ (غـازع حـد٠ املدٜٓـ١‬
‫حايٝــاً) د غــسم غــازع إٜــسإد تعتــرب ٖــرٙ‬
‫املٓطكــ١ َــٔ أنجــس املٓــاطل ايساقٝــ١ يف َدٜٓــ١‬
‫صٓعا٤ َٔ ايٓاحٝ١ ايتذازٜ١ ٚايطهٓٝ١ أٜغاًد‬
‫ؾٗــٞ حتتــٟٛ عًــ٢ ضــؿازات عسبٝــ١ ٚأدٓبٝــ١‬
‫َٚبــاْٞ يػــسنات ٚعــدد نــبري َــٔ ايؿٓــادم‬
‫ٚاملبــاْٞ ايرتؾٝٗٝــ١ َجــٌ ايٓــٛادٟ ٚاملطــاعِد‬
‫ٚأٜغاً تهجس ؾٝٗا َٓاشٍ ايتذاز ٚاملط٦ٛيني يف‬
‫ايدٚي١د ٚؾٝٗا عد٠ َسانص جتازٜ١ َٚعازضد‬
‫ٚأغًب ضانٓٝٗا ٜعتربٕٚ َٔ ايطبك١ ايساقٝ١د‬
‫ٚذيــو َــا جيعــٌ ملػــسٚعٓا أُٖٝــ١ نــبري٠ يف‬
‫ايعٓاٜـــ١ بتضـــُُٝ٘ َٚساعـــت َتطًبـــإ َـــٔ‬
‫ضٝطتؿٝد َـٔ ٖـرا املػـسٚع اهلـاّد ٚتٓؿٝـرٙ‬
       ‫مبطتٛ٣ ًٜٝل باملٛقع ايرٟ ضٝكاّ عًٝ٘.‬
‫ِغبؽخ أسع اٌّششٚع ٚأؿٛاٌٙب ٚاٌشٛاسع اٌّؾ١ـخ ثٙب :‬
                                                ‫تبًؼ َطاح١ أزض املػسٚع حٛايٞ 1376ّ2 َا‬                       ‫‪‬‬
                                                ‫ٜعـــادٍ 5.151 يبٓـــ٘د ٜٚبًـــؼ طـــٍٛ ايٛادٗـــ١‬
                                                ‫ايػـــُايٝ١ ايػسبٝـــ١ املطًـــ١ عًـــ٢ غـــازع دَػـــل‬
                                                ‫04.83ّد َٚٔ دٗ١ ايهٛزْس 02ّد َـٔ ادتٗـ١‬
                                                ‫ايػسبٝــ١ ايٛاقعــ١ عًــ٢ غــازع إٜــسإ 04.321ّد‬
                                                ‫َٚٔ ادتٗ١ ادتٓٛبٝ١ ايٛاقع١ عً٢ ايػـازع املتؿـسع‬
‫‪38.40m‬‬                                          ‫َٔ غازع إٜسإ 05.54 ّد َٚـٔ ادتٗـ١ ايػـسقٝ١‬
                                      ‫‪17.30m‬‬    ‫03.301 ّد َٚٔ دٗ١ املدخٌ ايؿسعٞ ايٛاقع يف‬
                                                ‫دٓــٛب غــسم 03.71 ّد َٚــٔ ادتٗــ١ ايػــسقٝ١‬
                                                ‫ايػـــــُايٝ١ ايـــــيت ظاْـــــب ايؿـــــٝال ايطـــــهٓٝ١‬
                                      ‫‪103.80m‬‬   ‫08.63 ّدأَا بايٓطب١ يًػٛازع احملٝطـ١ بـاألزض‬
                                                ‫ؾٗٓــاى غــازع دَػــل ٜٚعتــرب ايػــازع ايس٥ٝطــٞ‬
‫‪20.00m‬‬                                          ‫يًُػــسٚع ٜٚبًــؼ عــسض ايػــازع 03ّد ٖٚٓــاى‬
                                                ‫غازع َتؿسع َٓ٘ ٖٚٛ غازع إٜسإ ٜٚبًؼ عسعـ٘‬
                                                ‫02 ّد ٚايػازع املتؿسع َٔ غازع إٜسإ ٖٛ غازع‬
                                                ‫ؾسعٞ ٜبًؼ عسعـ٘ 01 ّد ٖٚٓـاى غـازع خًؿـٞ‬
                                                ‫يًُػسٚع َٔ دٗ١ ايػـسم ٜبًـؼ عـسض ايػـازع‬
                                                                                                   ‫01ّ.‬


         ‫‪123.40m‬‬   ‫‪45.50m‬‬
‫اٌشٛاسع اٌّؾ١ـخ ثأسع اٌّششٚع:‬


‫‪30m‬‬




                        ‫‪10m‬‬


‫‪15m‬‬




                        ‫‪10m‬‬


‫‪20m‬‬
‫اٌّؾ١ـبد ثأسع اٌّششٚع:‬



  ‫فندق سلاي الين‬




                                 ‫فيال سلنية‬



‫سوبر ماركت سام سنرت‬




                                 ‫فيال سلنية‬
 ‫معرض لبيع السجاد‬
‫اٌّذاخً اٌّزٛفشح ٌٍّششٚع ؽبٌ١ً:‬
 ‫ب‬
         ‫حتتٟٛ أزض املػسٚع عً٢ ثالث١‬                ‫‪‬‬
         ‫َداخٌ نبري٠ إىل حداً َاد تطُح‬
         ‫بدخٍٛ املػا٠ ٚايطٝازاتد ؾؿـٞ‬
         ‫ادتٗـــ١ ايػـــُايٝ١ ٜٛدـــد َـــدخٌ‬
         ‫ز٥ٝطٞ يدخٍٛ ايطٝازات يًطٛبس‬
         ‫َازنتد ٚيف ادتٗ١ ايػسبٝ١ ٜٛدد‬
         ‫ٖٓـــاى شتـــسج ٜـــؤدٟ إىل غـــازع‬
         ‫إٜـــسإد ٖٚٓـــاى َـــدخٌ ثـــاْٟٛ‬
         ‫ٜعُــــــٌ عًــــــ٢ زبــــ ـ األزض‬
         ‫بايػٛازع ارتًؿٝ١د ٜٚطـتؿٝد َـٔ‬
         ‫ٖـــرا املـــدخٌ ضـــهإ املٓـــاشٍ يف‬
         ‫ادتٗـــ١ ايػـــسقٝ١ َـــٔ املػـــسٚعد‬
         ‫ٚيهــٔ ميهــٔ اضــتخداخ َــداخٌ‬
         ‫تؿٝد املػسٚع ايـرٟ ضـٝكاّ عًـ٢‬
         ‫ٖــــرٙ األزضد ؾــــٝهُٔ عُــــٌ‬
         ‫َدخٌ َٔ ادتٗـ١ ادتٓٛبٝـ١ ٜـؤدٟ‬
         ‫إىل األبـــــــساج ايطـــــــهٓٝ١ أٚ أٟ‬
         ‫ٚعــــٝؿ١ ميهــــٔ إعــــاؾتٗا أثٓــــا٤‬
                                       ‫ايتضُِٝ.‬
‫أسع اٌّششٚع ثٛػؼٙب اٌؾبٌٟ:‬

      ‫‪ ‬األزض يف ايٛقــــت اذتــــايٞ‬
      ‫َطتأدس٠ َٔ قبٌ تـادس بٓـ٢‬
      ‫ؾٝٗـــا ضـــٛبس َازنـــت َـــٔ‬
      ‫اهلٓذـــــسد ٜطـــــُ٢ ضـــــٛبس‬
      ‫َازنت ادتٓدٍٚد ٚخضط‬
      ‫املطـــاح١ ايػـــُايٝ١ يٛقـــٛف‬
      ‫ايطــٝازات ايــيت تطــتؿٝد َــٔ‬
      ‫ٖرا ايطٛبس َازنتد أَـا يف‬
      ‫ادتٗ١ ادتٓٛبٝ١ يألزض ؾٗـٞ‬
      ‫حتتٟٛ عً٢ َٓصيني َٓؿضًني‬
      ‫ميهٔ االضتؿاد٠ َـٔ َطـاح١‬
      ‫املٓـــصيني يضـــاحل ايتٛضـــع يف‬
                   ‫األبساج ايطهٓٝ١.‬
‫ؽشوخ اٌّشبح ؽٛي ِٛلغ اٌّششٚع:‬
                          ‫‪ْ o‬س٣ يف ايضٛز٠ ادتاْبٝ١ زَٛش تـبني يٓـا‬
                         ‫املٓــاطل ايــيت ٜهجــس ؾٝٗــا َــسٚز املػــا٠‬
                         ‫اييت بايًٕٛ األمحسد بػهٌ َتٛاصـٌ‬
                         ‫ٚنجٝـ يف َعظِ أٚقات ايّٝٛ ضـٛاً يف‬
                         ‫ايٓٗــاز أٚ ايًٝــٌ ٚذيــو ٜسدــع إىل إٔ‬
                          ‫تًو املٓاطل حتتٟٛ عً٢ َساؾل خدَٝ١‬
                         ‫َجٌ احملالت ايتذازٜ١ ٚايؿٓادم ٚأٜغاً‬
                          ‫املٛاصالت ايعاَ١ ٚارتاص١د ٚايسَٛش‬
                          ‫ايــيت بــايًٕٛ األصــؿس تــبني يٓــا َٓطكــ١‬
‫حركة املشاة اللثيفة‬

‫حركة املشاة اخلفيفة‬
                          ‫حسنـ١ املػــا٠ ارتؿٝؿـ١ ٚايــيت تهــٕٛ يف‬
                          ‫بعض األحٝإ غب٘ خايٝ١ َٔ املػا٠ أٚ‬
                          ‫حت٢ ايطـٝازات ٚذيـو بطـبب ٚدـٛد‬
                             ‫املٓــــاشٍ ايطــــهٓٝ١ ٚخًــــٛ أٟ ْػــــا‬
                          ‫جتــازٟد ٚضــٝتِ االضــتؿاد٠ َــٔ ذيــو‬
                          ‫يعٌُ شتازج َٚداخٌ يألبساج ايطهٓٝ١‬
                                                            ‫َٔ ذيو.‬
‫اٌؼٛػبء ؽٛي اٌّششٚع:‬
                    ‫ْس٣ يف ايضٛز٠ ادتاْبٝ١ زَٛش تبني‬   ‫‪o‬‬
                    ‫يٓا املٓاطل اييت تتعسض يًغٛعا٤‬
                    ‫ضٛاً ناْت ْاجت١ َٔ حسن١‬
                    ‫املسنبات أٚ ْاجت١ َٔ حسن١‬
                    ‫املػاٙد ؾايًٕٛ األمحس ٜبني يٓا‬
                    ‫َٓاطل ذات عٛعا٤ عايٝ١د‬
                    ‫ٚايًٕٛ األصؿس ٜدي يٓا املٓاطل‬
                    ‫اييت تهٕٛ ٖاد٥١ ْطبٝاًد ْٚطتؿٝد‬
‫مناطق ضوضاء عالية‬   ‫َٔ ٖرا ايتخًٌٝ يتٛدٝ٘ املبٓ٢‬
‫مناطق ضوضاء خفيفة‬   ‫ايطها ٚاإلدازٟ نالً عطب‬
                    ‫إحتٝاد١ ؾُٔ املعسٚف إٔ ايطهٔ‬
                    ‫حيتاج إىل اهلدٚ٤د ؾٝتِ إشاح١‬
                    ‫املبٓ٢ ايطها بكدز اإلَهإ إىل‬
                    ‫املٓاطل اييت ال تتعسض‬
                    ‫يًغٛعا٤. أَا بايٓطب١ يًربج‬
                    ‫اإلدازٟ ؾًٝظ َٔ ايغسٚزٟ إٔ‬
                                ‫تهٕٛ يف َهإ ٖادئ.‬
‫انباب انثاني‬
        ‫انذراسة ادلناخية نهمىقع‬
‫(حركة انشمس - حركة انرياح - أثر انرطىبة - انتهىية)‬
‫صبٔ١ً : اٌذساعخ إٌّبخ١خ ٌٍّٛلغ:‬
                                                                  ‫ب‬
                                       ‫1- ؽشوخ اٌشّظ ؽٛي اٌّٛلغ‬
                           ‫‪ o‬األخر عسن١ ايػُظ ٍٖٛ َػسٚعٓا َِٗ دداً أثٓا‬
                           ‫ايتضُِٝ ؾٗٓا ؾساغات يف َػسٚعٓا تتطًب إعا٤٠‬
                           ‫طبٝعٝ١ دٝد٠ أٟ إعا٤٠ ايػُظ ٚتعترب َُٗ١ دداً هلرا‬
                           ‫ايؿساؽد ٚمبا أْٓا ْكع يف َٓطك١ َٓاخٗا غايباً َا ٜهٕٛ‬
                           ‫َعتدٍ يف ايضٝـ ٚبازد قًٝالً يف ايػتا٤د ؾُٝهٔ‬
                           ‫اضتػالٍ أغع١ ايػُظ بػهٌ دٝد يإلعا٤٠ َع األخر‬
                           ‫عسازتٗا ٚباذتساز٠ ايٓاجت١ َٔ األغخاظ ايًرٜٔ‬
                           ‫ٜتٛاددٚا داخٌ ٖرا ايؿساؽد ؾال تٛد٘ أغع١ ايػُظ‬
                              ‫إىل تًو ايؿساغات َباغستاً يهٞ ٜضًٓا عٛ٥ٗا ؾك‬
                           ‫ٚيٝظ حسازتٗاد ٖٚٓاى ؾساغات يف َػسٚعٓا دٝب‬
                           ‫محاٜتٗا َٔ أغع١ ايػُظ َٚٔ حسازتٗاد نايطٛبس‬
                           ‫َازنت ٚاملخاشٕ اييت تتبعٗاد ؾٝؿغٌ ٚقٛعٗا يف‬
                           ‫َٓاطل ايظٌ أٚ َٓاطل اييت حتتٟٛ عً٢ أغذاز ختؿـ‬
                           ‫َٔ حساز٠ ايػُظ ٚاإلعا٤٠د تهٕٛ أغع١ ايػُظ‬
‫حركة الشمس يف فصل الصيف‬
                           ‫يف ايضٝـ عُٛدٜ١ عً٢ املٛقعد أَا يف ؾضٌ ايػتا٤‬
‫حركة الشمس يف فصل الشتاء‬                        ‫ؾتهٕٛ َا٥ً١ باجتاٙ ادتٓٛب قًٝالً.‬
‫2- ؽشوخ اٌش٠بػ ٚاٌزٙٛ٠خ ٌٍّٛلغ‬
                                                    ‫‪ o‬يًسٜــات تــأثري نــبري يف ايتضــُِٝ ٚتــستب ايسٜــات بايتٜٗٛــ١‬
                                                    ‫ايطبٝعٝ١ ملبٓ٢ املػسٚعد ٚنُا ْعًِ إٔ ايسٜات يف بًدْا ٖٞ‬
                                                    ‫زٜات مشايٝ١ غسقٝ١ آتٝ١ َٔ ايبًدإ ايبازد٠ ؾًريو تهٕٛ‬
                                                    ‫ٖرٙ ايسٜات َضخٛب١ بـايربٚد٠ ايـيت جيـب َساعـا٠ ٚعـع‬
                                                    ‫املػسٚع بايٓطب١ هلرٙ ايسٜاتد ؾال جيب تٛدٝ٘ ايؿساغـات‬
                                                    ‫ايٛظٝؿٝ١ ايس٥ٝطٝ١ يف ْؿظ اجتاٙ ٖرٙ ايسٜات ألْٗـا ضـتٛثس‬
                                                    ‫عً٢ ٖرٙ ايؿساغـات ضـًباًد ٚيـتاليف ٖـرٙ املػـهً١ ميهـٔ‬
                                                    ‫تٛدٝـــ٘ ايؿساغـــات ايٛظٝؿٝـــ١ ايجاْٜٛـــ١ أٚ ارتدَٝـــ١ َجـــٌ‬
                                                    ‫اذتُاَـــات أٚ املطـــابمل أٚ املٓـــاٚز هلـــرٙ ايسٜـــات يتعُـــٌ‬
                                                    ‫نخادص ٜعٛم تأثري ٖرٙ ايسٜات ضًباًد أَا بايٓطب١ يًتٜٗٛ١‬
                                                    ‫ؾٝتخهِ بٗا َطاح١ ايؿساغات حٍٛ َبٓ٢ املػسٚعد ؾـإذا‬
                                                    ‫نإ ايؿساغات ٚاضع١ نإ ايتٜٗٛ١ دٝد٠ يًُبا ؾطـٝتػري‬
                                                    ‫اهلــٛا٤ داخــٌ املبٓــ٢ بػــهٌ َطــتُس يــٝالً ْٗــازاًد إَــا إذا‬
                                                    ‫ٚدــدت عٛا٥ــل نــبري تعــٛم ٚصــٍٛ اهلــٛا٤ إىل املبٓــ٢‬
                                                    ‫ؾطٝضــبح ٖــرا املبٓــ٢ غــري صــخٞ بايٓطــب١ يًــسٚاد ٖــرا‬
 ‫سهم يوضح اجتاه الرياح الشمالية الشرقية (سيئة )‬     ‫املػــسٚعد ٚأٜغ ـاً ٜهــٕٛ الزتؿــاع األضــطح عاَــٌ نــبري‬
‫سهم يوضح إجتاه الريـاح اجلنوبة الغربيـة ( حمببة )‬                                             ‫إلصتات عاٌَ ايتٜٗٛ١.‬
‫3- اٌشؿٛثخ اٌّؾ١ـخ ثّٛلغ اٌّششٚع‬

‫‪ o‬ايسطٛب١ ٖٞ ابتالٍ أٚ دؿاف اهلـٛا٤ داخـٌ َبٓـ٢ املػـسٚع ٖٚـٞ تتـأثس بعـد٠ عٛاَـٌد َجـٌ‬
‫دزد١ حـساز٠ اهلـٛا٤ ارتـازدٞد ٚنُٝـ١ ٖـرا اهلـٛا٤ ايـداخٌ َباغـس٠ إىل املبٓـ٢د باإلعـاؾ١‬
                                                         ‫يهُٝ١ ايسطٛب١ ايٓاجت١ عٔ اإلْطإ.‬

‫بايٓطب١ يضٓعا٤ ٜتُٝص َٓاخٗا بكً١ ايسطٛب١ ؾٝٗا أٚ تهاد تهـٕٛ َعدَٚـ١ ألْٗـا َٓطكـ١ دبًٝـ١‬   ‫‪o‬‬
 ‫َستؿع١د ايبخس بعٝد عٓٗاد ٚال ْكٍٛ أْٗا داؾ١ دداً َجٌ ارتسطّٛ دٖٛا داف صخساٟٚ.‬

‫‪ o‬أَا َٔ ْادٝ١ ٖٝهٌ املبٓ٢ ٚتأثري ايسطٛب١ ٚادتؿاف عًٝ٘د ؾريدع ذيو يًُٛاد املطتخدَ١ يف‬
‫تػٝٝد ٖرا ٚتؿاعًٗا َع ستٝطٗا ارتازدٞد ٜتِ اختٝاز املٛاد املٓاضب١ يًبٝ٦ـ١ ايـرٟ ٜكـاّ عًٝـ٘‬
                                                                                   ‫املػسٚع.‬
‫انباب انثانث‬
      ‫األمثهة ادلشاهبة‬
‫(حتهيم - واجهات - مساقط - مناظري)‬
‫1- ِششٚع رخشط (عبِؼخ ؽٍت ) :‬
                                           ‫حتًٌٝ املػسٚع :‬
‫املػسٚع ٖٛ عباز٠ عٔ َسنص جتازٟ إدازٟ ضها مبطاح١ 0006ّ َهٕٛ‬
‫َٔ بسدني بسج ضها غكل صػريٙ ٚبسج ادزٟ ٚثالخ ادٚاز يًُسنص‬
                                                 ‫ايتذازٟ .‬
                                                           ‫املُٝصات :‬
‫1 - املػسٚع ٜكع عً٢ أزبع غٛازع مما ٜؤدٟ إىل إطالي١ مجًٝ١ إىل‬
                                                       ‫ارتازج.‬
          ‫2 - عٌُ اتضاٍ َباغس بني ايربج اإلدازٟ ٚاذتٞ احملٝ .‬
‫3 - عًُٝ١ تٛشٜع احملالت ايتذازٜ١ بطسٜك١ ضًطً١ تطٌٗ عً٢‬
                                 ‫ايصبا٥ٔ ايتخسى يف نٌ احملٌ .‬
‫4 - عٓاصس االتضاٍ ايس٥ٝطٞ ٚشعٗا َٔ ْاحٝ١ ٚض املػسٚع‬
                                                  ‫ٚادتٛاْب.‬
     ‫5 - عًُٝ١ ايسب بني نٌ َهْٛات املػسٚع َع بعغٗا ايبعض .‬
                                                            ‫ايعٝٛب :‬
                          ‫1 - عدّ اضتػالٍ ايططح ملٓاطل خظسا٤‬
‫2 - نإ َٔ املؿرتض عٌُ يف األضطح بعض ايٛظا٥ـ َجٌ ايٓٛادٟ‬
                                          ‫َٚطاح١ يًعب األطؿاٍ‬
                ‫3 - عدّ ٚدٛد َطاحات خغسا٤ ستٝط١ باملػسٚع .‬
‫صورة توضح الواجهة الرئٌسٌة للمشروع‬




‫صورة توضح الواجهة الجانبٌة للمشروع‬
‫صورة توضح القطاع ‪B-B‬‬




‫صورة توضح القطاع ‪A-A‬‬
‫منظور داخلً للبهو‬
‫فً المركز التجاري‬
‫صورة منظورٌه توضح‬
  ‫الكتل فً المبنى‬
‫2- ِشوض طٕؼبء اٌزغبسٞ ( اٌّشوض اٌٍ١جٟ) :‬

                                                                                     ‫َٛقع املػسٚع:‬
                                                      ‫ٜكع املػسٚع يف َدٜٓ١ صٓعا٤ ٚبايتخدٜد يف ادتص٤‬
                                                             ‫ادتٓٛبٞ ايػسبٞ َٓٗا (عً٢ غازع ادتصا٥س).‬
                                                                    ‫َهْٛات املػسٚع‬
                                                                                    ‫ادتص٤ ايتذازٟ:‬
                                                      ‫ٜٚغِ ايدٚز األزعٞ ٚاألٍٚ َٔ املسنص ٖٚٛ‬
                                                          ‫عباز٠ عٔ بػبه١ َعدْٝ١ ؾساغٝ١ َع ايصداج.‬
                                                                                    ‫ادتص٤ ايطها:‬
                                                      ‫ٜٚتهٕٛ َٔ بسدني نٌ بسج َِٓٗ ٜتهٕٛ َٔ 5‬
                                                                               ‫أدٚاز (غكل ضهٓٝ١).‬
                                                                                     ‫ادتص٤ اإلدازٟ:‬
                                                      ‫ٜٚتهٕٛ َٔ بسج ٚاحد يف ادتٗ١ ايػُايٝ١ َٔ‬
                                                                             ‫املسنص (َهاتب إدازٜ١).‬
                                                                                 ‫َٛاقـ ايطٝازات :‬
                                                                                   ‫ٚتكع يف ايبدزّٚ.‬
‫صورة منظوريه للمركز التجاري اإلداري السكني‬
‫املُٝصات:‬
               ‫• ٚقٛع املسنص عً٢ غٛازع ز٥ٝطٝ١ ٚحطاض١ يف َدٜٓ١ صٓعا٤ (غازع ادتصا٥س – ٚغازع ايطتني).‬
                                                                         ‫• ضٗٛي١ ايٛصٍٛ إىل املسنص.‬
  ‫• ضٗٛي١ ايٛصٍٛ إىل املٓطك١ ايتذازٜ١ يف ايدٚز األزعٞ مبا ال ٜتعازض َع َدخٌ ايطهٔ أٚ َدخٌ املهاتب.‬
            ‫• ايٛصٍٛ َٔ ٚإىل َٛاقـ ايطٝازات يف ايبدزّٚ دٕٚ تعازض َع َطازات اذتسن١ ارتاص١ باملػا٠.‬



                                                                                             ‫ايعٝٛب:‬
                                                                  ‫• خيدّ املػسٚع ؾ٦١ َعٝٓ١ َٔ‬
                                                                                            ‫اجملتُع.‬
                                                                            ‫• ععـ َداخٌ املػسٚع.‬
                                                                  ‫• َٛاقـ ايطٝازات قًًٝ١ بايٓطب١‬
                                                                                      ‫ذتذِ املبٓ٢.‬
                                                                  ‫• عدّ ٚدٛد َٓاطل خغسا٤ حٍٛ‬
                                                                                              ‫املبٓ٢ .‬




‫صورة منظوريه للمركز التجاري اإلداري السكني‬
‫هسقظ الذور األرضً للقسن التجاري‬
‫هسقظ الذور األول للقسن التجاري‬
‫هسقظ لألدوار الوتكررة للقسن السكنً‬
‫هسقظ لألدوار الوتكررة للقسن اإلداري‬
‫3- ِششٚع ِمذَ ػّٓ ِبدح اٌزظّ١ُ اٌّؼّبسٞ :‬
                                           ‫• ٖرا املػسٚع عباز٠ عٔ بسج ضها جتازٟ إدازٟ‬
                                           ‫بايسغِ َٔ صػس حذُ٘ إىل إٔ َٔ صُُ٘ حاٍٚ‬
                                           ‫إٔ جيُع ٖرٙ ايعٓاصس بػهٌ َدزٚع َٔ‬
                                                                     ‫ايٓاحٝ١ ايٛظٝؿٝ١.‬


                                                                                       ‫املُٝصات :‬
                                           ‫• ٚعع َدخٌ ايطٝازات يف ايػازع ايؿسعٞ‬
                                              ‫ععٝـ اذتسن١ يٝطاعد دخٍٛ ٚخسٚج ايطٝازات.‬
                                           ‫• زب اذتسن١ ايسأضٝ١ َٔ ايبدزّٚ إىل األدٚاز‬
                                                                          ‫املتهسز٠ بػهٌ دٝد.‬
                                                           ‫• اذتسن١ داخٌ املسنص ضًٗ١ ٚٚاعخ١.‬
                                                 ‫• زب ايػكل ايطهٓٝ١ ٚاإلدازٜ١ باملسنص ايتذازٟ.‬


                                                                                ‫ايعٝٛب :‬
                                           ‫• عٌُ نطسات داخٌ املعازض عًُت عً٢ تغٝٝع‬
                                                                            ‫ايؿساغات.‬
                                                      ‫• ٚدٛد ممسات عٝك١ يف بعض األَانٔ.‬




‫هسقظ للذور األرضً التجاري‬
‫املُٝصات:‬
                        ‫• أعط٢ يهٌ نتً١ ثالخ ٚادٗات مما ٜطاعد عً٢‬
                                               ‫اإلعا٤٠ ادتٝد٠ ٚايتٜٗٛ١.‬
                           ‫• زب ايطالمل بارتازج يًُطاعد٠ عً٢ اإلعا٤٠.‬
                        ‫• تٛشٜع املضاعد يف اإلطساف ٚعددٖا نايف يًػكل‬
                                                                ‫ايطهٓٝ١‬
                                         ‫• َٛعع املٓٛز ٜعترب دٝد ذتد َا.‬
                        ‫• َطاح١ ايبٗٛ نبري٠ تطاعد يف دخٍٛ اإلعا٤٠‬
                                             ‫ٚأٜغا‬
                                                  ‫يٓكٌ ٚتستٝب األثاخ .‬
                        ‫• َسْٚ١ ايتضُِٝ عٝح ٜطتطٝع اضتخداّ ايػك١‬
                                          ‫ضهٓٝ١ أٚ إدازٜ١ أٚ عٝاد٠ طبٝ١‬
                                                                 ‫ايعٝٛب:‬
                             ‫• عٝٛب يف ايتضُِٝ باضتخداَ٘ ايتُاثٌ ايتاّ.‬
                            ‫• عدّ اضتخداّ أٟ أغهاٍ ٖٓدضٝ١ غري املسبع.‬




‫هسقظ لألدوار الوتكررة‬
  ‫السكنٍت واإلدارٌت‬
‫املُٝصات :‬
                                      ‫• عٌُ تدزدات َٔ األضؿٌ إىل األعً٢ يف ايٛادٗات‬
                                                                     ‫ايصدادٝ١ ٚ املضُت١ .‬
                                                 ‫• عٌُ ؾتخات نبريٙ يًدٚز األٍٚ ايتذازٟ .‬
                                                        ‫• املدخٌ ٚاعح ٚ نبري إىل حدا َا .‬
                                      ‫• تطعِٝ ايٛادٗات بعٓضس َٔ ايطابع املعُازٟ‬
                                                                                  ‫يضٓعا٤ .‬

                                                                                     ‫ايعٝٛب :‬
                                               ‫• عدّ ٚدٛد ٚحدٙ َعُازٜ٘ ٚأٜغا زمت يًٛادٗ١ .‬
                                      ‫• ؾتخات ضٝ٦١ يًدٚز ايجاْٞ ايتذازٟ . ال ٜدٍ عً٢ أْ٘‬
                                                                                ‫َسنص جتازٟ‬
                                                               ‫• عدّ اضتخداّ ايعٓضس األؾكٞ .‬
                                           ‫• حيبر إٔ ٜهطس ًٌَ األزنإ بصٚاٜا دا٥سٜ١ (نسؾات) .‬
                                                          ‫• خ ايطُا٤ دا٤ مبطتٛ٣ ٚاحد ممٌ .‬




‫واجهت للوبنى السكنً التجاري اإلداري‬
‫انباب : انرابع‬
‫(ادلكىنات - انعناصر - انعالقات انىظيفية)‬
‫ستالت بٝع األغرٜ١:‬
                                                                     ‫• ستالت بٝع األيبإ.‬
                                                     ‫• ستالت ايعطاز٠ ٚايتُٜٛٔ ايػرا٥ٞ.‬
              ‫•ستالت ايطذاد ٚاملؿسٚغات :‬      ‫• أَانٔ َؿتٛح١ يبٝع ارتغسٚات ٚايؿٛان٘.‬
                 ‫ستالت بٝع املؿازش .‬                              ‫ستالت ايكطاع ارتاظ :‬
                  ‫ستالت بٝع ايطذاد .‬                                   ‫•ستالت األقُػ١ :‬
                                                                        ‫أقُػ١ َتٓٛع١ .‬
                   ‫•ستالت األدٗص٠ ايدقٝك١ :‬                             ‫أقُػ١ ايطتا٥س .‬
            ‫ستالت بٝع األدٗص٠ ايطبٝ١.‬                                 ‫أقُػ١ ايعسا٥ظ .‬
‫ستالت بٝع ايهاَريات ٚأدٚات ايتضٜٛس .‬                                     ‫أقُػ١ زدايٝ١.‬
                  ‫ستالت بٝع ايطاعات.‬                           ‫•ستالت األحرٜ١ ٚادتًٛد:‬
                                                             ‫أحرٜ١ ْطا٥ٝ١ ٚحكا٥ب .‬
              ‫• ستالت اجملٖٛسات ٚايؿغ١:‬
                                                              ‫أحرٜ١ زدايٝ١ ٚأحصَ١ .‬
          ‫ستالت بٝع ايرٖب ارتازدٞ.‬                                      ‫أحرٜ١ أطؿاٍ .‬
            ‫ستالت بٝع اذتًٞ ٚايؿغ١.‬                    ‫حكا٥ب َدزضٝ١ ٚحكا٥ب ضؿس‬
                    ‫•ستالت خدَٝ١ ٚحسؾٝ١:‬                             ‫• ستالت ايكسطاضٝ١:‬
                                                                    ‫قسطاضٝ٘ َتٓٛع١.‬
                ‫ستالت خٝاط١ ٚتطسٜص.‬
                                                         ‫َطتًصَات طباع١ ٚطابعات.‬
                       ‫حالق١ ٚجتٌُٝ.‬                    ‫َعدات َٚطتًصَات ٖٓدضٝ١.‬
                        ‫إصالت أحرٜ١.‬                                          ‫َهتبات.‬
                                                             ‫ستالت دسا٥د ٚزتالت.‬
‫دساعخ اٌؼاللبد اٌٛظ١ف١خ‬
                                    ‫ِخـؾ رٛص٠ؼٟ ٌؼٕبطش اٌّششٚع اٌشئ١غ١خ :‬

                          ‫مذخل المشروع‬

‫الشقق السكنية‬



                        ‫الونطقت الخضراء‬

‫المكاتب اإلدارية‬


                          ‫موقف السيارات‬
‫ِخـؾ رٛص٠ؼٟ ٌؼٕبطش اٌّشوض اٌزغبسٞ:‬

                                                       ‫مددن ددمي‬

                        ‫محالت تجارًة‬           ‫ساللم‬      ‫مطبخ‬
                                              ‫ومصاعد‬

‫ؾرع‬        ‫سٌوما‬                                           ‫حمامات‬
‫البوك‬
                                                                           ‫مطع ــم‬
‫ملـتب‬                              ‫امامن جلوس‬
‫امن‬

‫اتصالت‬                                 ‫بهو توزًع‬
         ‫محالت تجارًة‬
                                                                    ‫مقهى‬
                                  ‫المددن الرئٌسي‬
‫محالت‬          ‫اٌؼاللبد اٌٛظ١ف١خ ٌؼٕبطش اٌّشوض اٌزغبسٞ:‬
                             ‫متوسطة‬
          ‫محالت‬                               ‫محالت‬
          ‫مبٌرة‬                               ‫صؼٌرة‬

                           ‫ممرات‬                               ‫ػاللخ لٛ٠خ‬
                                                            ‫ػاللخ ِزٛعـخ‬
                        ‫بهو تؿرًغ + امامن‬
                                                             ‫ػاللخ ػؼ١فخ‬
          ‫مقهى‬                                ‫مطعم‬
                            ‫جلوس‬


                                                                                ‫صالة‬
                                            ‫ؾرع بوك +‬                           ‫سٌوما‬
                                             ‫اتصالت‬
                              ‫بهو‬
‫رمن لعب‬                      ‫مددن‬                          ‫بهو‬
 ‫اطؿال‬
                  ‫امن‬
                             ‫مددن‬              ‫إدارة‬                    ‫مددن‬
                             ‫رئٌسي‬                                      ‫ثاهوي‬
‫اٌؼاللبد اٌٛظ١ف١خ ٌٍٛؽذح اٌغىٕ١خ:‬
              ‫صالة‬
             ‫الطعام‬
‫الملـتب‬                       ‫المطبخ‬


          ‫ػرؾة المعٌشة‬                          ‫ػاللخ لٛ٠خ‬
                                             ‫ػاللخ ِزٛعـخ‬
                                              ‫ػاللخ ػؼ١فخ‬
‫المجلس‬                         ‫ػرؾة‬
           ‫الحمامات‬            ‫الووم‬


‫المددن‬




                         ‫93‬
‫دساعخ اٌّغبؽبد ٌٍّششٚع:‬

              ‫عذاٚي ؽغبة اٌّغبؽبد ٌٍغضء اٌغىٕٟ‬
                          ‫1- ٔظبَ األعٕؾخ‬
‫المساحة اإلجمالٌة‬     ‫عدد الفراغات‬    ‫المساحة للفرد المستخدم‬     ‫نوع الفراغ‬

     ‫51م2‬                  ‫1‬                  ‫51م2‬                ‫غرفة نوم‬
      ‫8 م2‬                 ‫1‬                  ‫8 م2‬               ‫صالة جلوس‬
      ‫5 م2‬                 ‫1‬                  ‫5 م2‬                  ‫حمام‬

      ‫6 م2‬                 ‫1‬                  ‫6 م2‬             ‫ركن تحضير طعام‬


                                                 ‫* ِغبؽخ اٌغٕبػ اٌٛاؽذ = 43 َ2.‬
                                    ‫خذِبد ِّٚبشٟ 04 % = 6.31َ2.‬
                                       ‫ِغبؽبد خؼشاء 03 % = 01 َ2.‬
                          ‫اإلعّبٌــــــــــــــــــــــــٟ = 6.75 َ2.‬
‫2- ٔظبَ شمك غشفز١ٓ‬
                                          ‫المساحة للفرد‬
‫المساحة اإلجمالٌة‬    ‫عدد الفراغات‬                             ‫نوع الفراغ‬
                                            ‫المستخدم‬

     ‫23م2‬                 ‫2‬                  ‫61م2‬              ‫غرف نوم‬
     ‫51 م2‬                ‫1‬                  ‫51 م2‬            ‫صالة جلوس‬
    ‫01 م2‬                 ‫2‬                   ‫5 م2‬               ‫حمام‬
     ‫21 م2‬                ‫1‬                  ‫21 م2‬              ‫مطبخ‬
      ‫8 م2‬                ‫1‬                   ‫8 م2‬            ‫غرفة طعام‬
      ‫4 م2‬                ‫1‬                   ‫4 م2‬              ‫مخزن‬

                                           ‫•ِغبؽخ اٌشمخ ٔظبَ غشفز١ٓ = 18 َ2.‬
                                  ‫خذِبد ِّٚبشٟ 04 % = 4.23 َ2.‬
                                    ‫ِغبؽبد خؼشاء 03 % = 3.42 َ2.‬
                          ‫اإلعّبٌـــــــــــــــــــــــٟ = 7.731 َ2.‬
‫3- ٔظبَ شمك صالس غشف‬
‫المساحة اإلجمالية‬     ‫عذد الفراغات‬          ‫المساحة للفرد المستخذم‬   ‫نوع الفراغ‬

     ‫84 م2‬                 ‫3‬                        ‫61م2‬             ‫غرف نىم‬
     ‫51 م2‬                 ‫1‬                       ‫51 م2‬             ‫صالت جلىس‬
    ‫01 م2‬                  ‫2‬                        ‫5 م2‬               ‫حوام‬
     ‫21 م2‬                 ‫1‬                       ‫21 م2‬               ‫هطبخ‬
      ‫8 م2‬                 ‫1‬                        ‫8 م2‬             ‫غرفت طعام‬
      ‫4 م2‬                 ‫1‬                        ‫4 م2‬               ‫هخزى‬

                                               ‫* ِغبؽخ اٌشمخ ٔظبَ صالس غشف = 79 َ2.‬
                                         ‫خذِبد ِّٚبشٟ 04 % = 8.83 َ2.‬
                                             ‫ِغبؽبد خؼشاء 03 % = 92 َ2.‬
                                     ‫اإلعّبٌــــــــــــــــــٟ = 8.461 َ2.‬
‫4- ٔظبَ شمك أسثغ غشف‬
                                            ‫المساحة للفرد‬
‫المساحة اإلجمالية‬     ‫عذد الفراغات‬                               ‫نوع الفراغ‬
                                              ‫المستخذم‬

     ‫46 م2‬                 ‫4‬                   ‫61م2‬              ‫غرف نىم‬
     ‫51 م2‬                 ‫1‬                   ‫51 م2‬            ‫صالت جلىس‬

    ‫01 م2‬                  ‫2‬                    ‫5 م2‬               ‫حوام‬
     ‫21 م2‬                 ‫1‬                   ‫21 م2‬               ‫هطبخ‬
      ‫8 م2‬                 ‫1‬                    ‫8 م2‬             ‫غرفت طعام‬
      ‫4 م2‬                 ‫1‬                    ‫4 م2‬               ‫هخزى‬

                                           ‫* ِغبؽخ اٌشمخ ٔظبَ أسثغ غشف = 311 َ2.‬
                                    ‫خذِبد ِّٚبشٟ 04 % = 2.54 َ2.‬
                                      ‫ِغبؽبد خؼشاء 03 % = 9.33 َ2.‬
                           ‫اإلعّبٌـــــــــــــــــــــــــــٟ = 291 َ2.‬
‫رؾٍ١ً أعضاء اٌّشوض اٌزغبسٞ:‬
                                                                          ‫1- اٌّؾالد اٌزغبسٞ:‬
             ‫ٚ٠فؼً أْ رشغً اٌّغزٛ٠بد اٌغفٍ١خ ِٓ اٌّجٕٝ ٚ٠زشاٚػ ِغبؽخ وً ِؾً ِٓ "42-05" َ2.‬

                                               ‫ٚأُ٘ اٌفشاغبد اٌزٟ ٠غت ٚعٛد٘ب فٟ اٌّؾالد اٌزغبس٠خ ٟ٘:‬
‫أ- ِىبْ اٌج١غ: ٚ٘ٛ اٌّىبْ اٌزٟ رؼشع ف١ٗ اٌجؼبئغ ٚ٠شربدٖ اٌّزغٛلْٛ ٚ٠ؼزجش اٌغضء األعبعٟ ِٓ اٌغٛق ٚف١ٗ‬
  ‫رٛعذ ألغبَ اٌؼشع ٚثؼغ اٌضالعبد اٌظغ١شح ثبإلػبفخ إٌٝ ٚعٛد ِغزٛدػبد طغ١شح رغزٛػت االعزٙالن اٌ١ِٟٛ.‬
‫ٚفٟ ثؼغ اٌّؾالد اٌىض١شح ِٓ اٌؼشٚسٞ عذً أْ ٠ىٛ اٌّغزٛدع اٌىج١ش ٘ٛ ٔفغٗ ِؾً اٌؼشع ٌٚىٓ ثشىً‬
                                                           ‫ا‬
‫ِٛعغ ، أِب ثبٌٕغجخ ٌّىبْ اٌزؼبًِ فئٔٗ لذ ٠ىْٛ ِغمٛف عضئ١ً إٚ وٍ١ً ٚ٠فؼً أْ ٠ىْٛ ِغمٛف وٍ١ً ٚرٌه‬
      ‫ب‬                            ‫ب‬     ‫ب‬
                                                                              ‫ٌؾّب٠خ اٌجؼبئغ ِٓ اٌزٍف.‬
‫ة- اٌّغزٛدػبد: ٌٚٙب أٔٛاع ػذح فٟ اٌّشاوض اٌزغبس٠خ فّٕٙب ِب ٠ىْٛ ِشوضٞ أٞ أٔٙب ِخبصْ ػبِخ ٌىً اٌغٛق‬
‫ٌٚفزشاد صِٕ١خ ؿٛ٠ٍخ أٚ ٌىً ِغزٛدع خبص ثٗ ٌؾفظ وّ١خ اٌجؼبئغ ٌفزشح لظ١شح لذ رىْٛ صالعبد أٚ ِغبؽبد‬
‫رخض٠ٓ أٚ ِغزٛدػبد ٚرزشاٚػ ِغبؽخ اٌّغزٛدػبد اٌٍّؾمخ ثّىبْ اٌج١غ ؽٛاٌٟ سثغ ِغبؽخ اٌج١غ ٚلذ رشزًّ أٚ‬
                                                                                     ‫رىْٛ ِغبٚ٠خ ٌٙب.‬
‫2- ِٛالف اٌغ١بساد:‬
‫أ- ٟٚ٘ راد ػاللخ ِجبششح ثبٌّغزٛدػبد (04 َ2) ٚلذ رىْٛ ٌٙب ػاللخ ثّىبْ اٌج١غ ٚرٌه إرا وبْ اٌّغزٛدع ِشرجؾ ثّىبْ اٌج١غ ٚلذ ال‬
                                                        ‫رىْٛ ٌٙب ػاللخ ثّىبْ اٌج١غ إرا وبٔذ اٌّغزٛدػبد ِفظٌٛخ ػٓ أِبوٓ اٌج١غ.‬
  ‫ة- ِٛالف ع١بساد اٌضثبئٓ ٟٚ٘ راد ػاللخ ِجبششح ثّىبْ اٌج١غ ٚرىْٛ ِغبؽزٗ ِٓ (8-52َ2). ِغ األخز فٟ االػزجبس ػٍٝ رٛف١ش ا٢رٟ:‬


                    ‫*ؽّبَ ػبَ (2-4َ2).‬           ‫* ِخضْ ٌّؼذاد اٌزٕظ١ف (8-21َ2)‬              ‫* غشفخ ؽبسط (21-41َ2)‬

                                                                                                      ‫3- ِـؼُ ع١بؽٟ:‬
                                                                                                    ‫ٚ٠زىْٛ ِٓ :‬
                       ‫(001-021) شخض فٟ آْ ٚاؽذ‬                                                     ‫أ- طبٌخ ؿؼبَ‬
                                      ‫(03-63َ2)‬                                                       ‫ة- اٌّـجخ‬
                                      ‫(81-42َ2)‬                                                    ‫ط- ِخضْ عبف‬
                                                 ‫(81-42َ2)‬                                          ‫د- ِخضْ ثبسد‬
                                     ‫(21-61َ2)‬                                         ‫٘ـ- ؽّبَ سعبٌٟ ٌٍؼبٍِ١ٓ‬
                                                                              ‫ٚ- إداسح اٌّـؼُ.. ٚرشًّ ػٍٝ ا٢رٟ:‬
                                       ‫(81-02َ2)‬                                      ‫1- غشفخ اٌّذ٠ش ٚاٌغىشربس٠خ‬
                                     ‫(21-41َ2)‬                                                ‫2- غشفخ اٌّؾبعت‬
                            ‫(01-21َ2)‬                ‫3- غشفخ اٌششف ػٍٝ طبٌخ اٌّـؼُ ٚاٌؼبٍِ١ٓ ف١ٙب‬
                                         ‫(41-31َ2)‬         ‫4- ِخضْ ٌّؼذاد طبٌخ اٌـؼبَ ِٓ اٌضعبع١بد ٚاٌّال٠بد‬
‫4- اٌفؼبءاد اٌىٍ١خ اٌخذِ١خ:‬
             ‫(04-06َ2).‬                                                                ‫أ- غشفخ ِىبئٓ اٌزى١١ف‬
            ‫(02-42َ2).‬                                                         ‫ة- غشفخ اٌٌّٛذاد اٌىٙشثبئ١خ‬
                         ‫( 42-03َ ).‬          ‫ط- ِغبؽبد خبطخ ٌخضأبد اٌّ١بٖ اٌظبفٟ ِغ اٌّؼخبد اٌزبثؼخ ٌٙب‬
                                     ‫د- ٍِغأ ٌٍّغزخذِ١ٓ أصٕبء ؽبالد اٌـٛاسا ½ َ2 ٌىً شخض فٟ اٌجٕب٠خ.‬
‫٘ـ- اٌـبثك اٌخذِٟ ٚ٠غزخذَ ٚ٠ظُّ ٌزؾٛ٠ً أٔبث١ت ِغبسٞ اٌّبء اٌظبفٟ ٚاٌزشغ١ً إٌبصي ٚاٌظبػذ ِٓ اٌّىبرت‬
‫ٚاٌٛظبئف األخشٜ فٟ أٔفبق خبطخ ثزٌه ٚ٠ّىٓ االعزغٕبء ػٓ ٘زا اٌـبثك إرا رُ رؾٛ٠ً رٍه األٔبث١ت ػّٓ وً‬
                                                          ‫ؿبثك ٚفٟ اٌغمف اٌزبثغ ٌٗ ٚرغـ١زٙب ثغمف وبرة.‬
‫عذٚي ؽغبة ِغبؽبد اٌغضء اٌزغبسٞ‬
‫عذٚي ؽغبة ِغبؽبد اٌغضء اٌزغبسٞ‬
‫عذٚي ؽغبة ِغبؽبد اٌغضء اإلداسٞ‬
‫انباب : اخلامس‬
‫(ادلعايري انتصميمية وانتخطيطية)‬
‫أٚ ً: اٌّؼب٠١ش اٌزخـ١ـ١خ ٚاٌزظّ١ّ١خ ٌٍّشاوض اٌزغبس٠خ‬
                                                                     ‫ال‬
                                                                                    ‫اٌّؼٍِٛبد األٌٚ١خ ٌزخـ١ؾ اٌّشاوض اٌزغبس٠خ:‬

                                                   ‫1- رٛع١ٗ اٌّذخً ثؾ١ش ٠ؾمك عٌٙٛخ اٌؾشوخ ٚاٌٛطٛي ٚاال٘زذاء اٌغش٠غ .‬
‫2- رؾذ٠ذ ِغبؽخ إٌّـمخ اٌزغبس٠خ ٚؽذٚد٘ب ػٓ ؿش٠ك رؾٍ١ً األٚػبع اٌشإ٘خ اٌزٟ ِٓ اٌّّىٓ ؽذٚصٙب ٌؼذد ٚوضبفخ‬
‫اٌغىبْ ثبإلػبفخ إٌٝ خظبئظُٙ ٚؽبعبرُٙ االلزظبد٠خ ٚوزٌه دساعخ اٌـشق ٚٚعبئً إٌمً اٌّٛطٍخ إٌ١ٙب ِٚغبفخ‬
                                                                                                        ‫ٚؽذح االٔزمبي.‬
                                                                                                       ‫3- اٌمٛح اٌششائ١خ:‬
‫إْ ِؼشفخ اٌمٛح اٌششائ١خ ػٕذ اٌغىبْ ِّٙخ عذً . إر أْ اٌمٜٛ اٌششائ١خ ٕ٘ب رزؼٍك ثذخً األفشاد ؽ١ش أْ اإلٔفبق ٌٗ‬
                                                                    ‫ا‬
‫ػاللخ ؿشد٠خ ثذخً اٌفشد. إر أْ ثّؼشفخ اٌمٛح اٌششائ١خ ٌٍّٕـمخ اٌّـٍٛثخ رخـ١ؾ ِشوض٘ب ُِٙ اٌزؼشف ػٍٝ ِذٜ ؽبعخ‬
                                                                                   ‫إٌّـمخ إٌٝ اٌّشوض اٌزغبسٞ ٚٔٛػٗ.‬
                                                                                                    ‫4- إٌّبفغخ اٌزغبس٠خ:‬
‫إْ إٌّبفغخ اٌزغبس٠خ رٍؼت دٚسً فٟ عزة اٌؼّالء ِٓ ِٕـمخ إٌٝ أخشٜ ٚثبٌزبٌٟ رؤصش ػٍٝ ؽغُ ِٚغبؽخ اٌّشوض‬
                                                                                   ‫ا‬
                                             ‫اٌزغبسٞ ؽ١ش ػذد اٌزٞ ٠شدْٚ إٌٝ اٌّشوض ٠ٍؼت دٚسً فٟ رؾذ٠ذ أّ٘١زٗ.‬
                                                               ‫ا‬
‫إْ اٌّؼٍِٛبد اٌزٟ روشد وٍٙب رؤدٞ إٌٝ ِؼشفخ اٌؾغُ اٌزمش٠جٟ ٌم١ّخ اٌّج١ؼبد ٚثبٌزبٌٟ ٠غزفبد ِٕٙب فٟ رؾذ٠ذ ٚرٛص٠غ‬
                                                                            ‫اٌّغبؽبد اٌالصِخ ٌزخـ١ؾ ٚرظّ١ُ اٌّشوض اٌزغبسٞ.‬
‫ا- ٔمبؽ ال ثذ ِشاػبرٙب ػٕذ ػًّ اٌّشاوض اٌزغبس٠خ‬

                                                                                                         ‫1- اٌّٛلغ:‬
 ‫رمغ فٟ ِشوض األػّبي فٟ ِىبْ اٌزغّؼبد اٌغىبٔ١خ، أِبوٓ لش٠جخ ِٓ اٌّؾـبد ٚاٌزمبؿؼبد ٚٚعبئً إٌمً ٚفٟ أؿشاف اٌّذْ.‬
                                                                                                  ‫2- ِٛالف اٌغ١بساد:‬
‫٘زٖ األ٠بَ ٠زغٛق إٌبط ثغ١بسارُٙ ٚفٟ اٌٛال٠بد اٌّزؾذح ِىبْ ٌىً "0003 إٌٝ 0004" شخض أٚ ٔغجخ ِٓ اٌّغبؽبد اٌضعبع١خ‬
 ‫فٟ اٌٛاعٙخ رجؼً إٌٝ أِبوٓ ٚلٛف اٌغ١بساد رغبٚٞ 1/5.2 ٚرٌه ػٕذِب رٕظُ أِىٕخ لٍ١ٍخ أٚ أِىٕخ ع١بساد ِغٍمخ أٚ وشاط فٟ‬
                                                                                                   ‫ب‬
                                                                                                     ‫األػٍٝ ... إٌخ.‬
                             ‫ثبٌٕغجخ ٌٍ١ّٓ :- اٌّزبعش فٟ اٌؼٛاؽٟ : "5" أِبوٓ ٌىً 001َ2 ِٓ إعّبٌٟ ِغبؽخ اٌّجٕٝ.‬
                                     ‫اٌّزبعش خبسط اٌّذ٠ٕخ : "5.8 ِىبْ ٌىً 001 َ2 ِٓ إعّبٌٟ ِغبؽخ اٌّجٕٝ.‬
                                ‫ِزبعش إٌّـمخ اٌّشوض٠خ : "57.5" ِىبْ ٌىً 001َ2 ِٓ إعّبٌٟ ِغبؽخ اٌّجٕٝ.‬
                                                                                             ‫3- ؽشوخ اٌّشبح ٚاٌّٛاطالد:‬
                                                             ‫أ- ٠غت أْ رفظً ؽشوخ اٌّشبح ػٓ ؽشوخ اٌؼشثبد ٚاٌجؼبئغ.‬
                                   ‫ة- إؽذاس ؿشق ِشبح لظ١شح ِؾّ١خ ِٓ اٌشّظ ٚاٌّـش ث١ٓ ِٛلف اٌغ١بساد ٚاٌّزغش.‬
                                             ‫ط- سثؾ ِٛالف اٌجبطبد أٚ اٌغىه اٌؾذ٠ذ٠خ أٚ اٌّزش ثأسطفخ أٚ ِذاخً ٌٍّشوض.‬
‫ة- ٔمبؽ ال ثذ ِشاػبرٙب ػٕذ ػًّ اٌّشاوض اٌزغبس٠خ:‬

                                                                                                   ‫3- ؽشوخ اٌّشبح ٚاٌّٛاطالد:‬
                                                                ‫أ- ٠غت أْ رفظً ؽشوخ اٌّشبح ػٓ ؽشوخ اٌؼشثبد ٚاٌجؼبئغ.‬
                                       ‫ة- إؽذاس ؿشق ِشبح لظ١شح ِؾّ١خ ِٓ اٌشّظ ٚاٌّـش ث١ٓ ِٛلف اٌغ١بساد ٚاٌّزغش.‬
                                                 ‫ط- سثؾ ِٛالف اٌجبطبد أٚ اٌغىه اٌؾذ٠ذ٠خ أٚ اٌّزش ثأسطفخ أٚ ِذاخً ٌٍّشوض.‬
                                                                                                         ‫4- اٌّذاخً اٌشئ١غ١خ:‬
‫٠غت رٛع١ٙٙب ثّب ٠ؾمك عٌٙٛخ اٌؾشوخ ٚاٌٛطٛي ٚاأل٘زذاء اٌغش٠غ ٚثّب ٠زظً ثّشاوض اٌؾشوخ ا٢ٌ١خ اٌخبطخ ٚاٌؼبِخ ِٓ ٚاٌّشبح ِٓ عٙخ‬
                                                                                                                     ‫أخشٜ.‬
                                                                                                  ‫5- اٌّغبؽبد اٌخؼشاء:‬
                              ‫٠غت ِشاػبح رٛفش ِغبؽبد خؼشاء وبف١خ ٌخذِبد أٚ ٌخذِخ اٌّشوض ثشىً خبص ٚاٌّغزّغ ثشىً ػبَ.‬
                                                                                                                  ‫6- اٌزٛع١ٗ:‬
‫٠غت ِشاػبح اٌزٛع١ٗ اٌظؾ١ؼ ٚاٌزٞ ع١غبػذ فٟ اٌزؾىُ فٟ ػٍّ١خ ػضي اٌؼٛػبء ٚفٟ ػٍّ١خ إخّبد اٌؾشائك ٚرغٕجٙب ثغشػخ رفٛق‬
                                                      ‫عشػخ أزشبس٘ب ٕٚ٘ب ٠غت إثؼبد اٌّجٕٝ ثّغبفخ 51َ ػٓ األشغبس اٌىج١شح.‬
‫ط- ٔمبؽ ِجذئ١خ فٟ رظّ١ُ اٌّشاوض اٌزغبس٠خ‬

    ‫1- ؿبٌّب أْ لغُ اٌضثبئٓ ٠زغٛلْٛ ثغ١بسارُٙ اٌخبطخ فئْ رخظ١ض ِٛلف ٚاؽذ ٌىً (003-004) شخض ِغ اؽزّبي صالس ِشاد ٠ِٛ١ً.‬
     ‫ب‬
          ‫2- إْ ٔغجخ ِغبؽخ اٌغٛق إٌٝ ِغبؽخ ِٛلف اٌغ١بساد ِزؼٍمخ ثبٌّٛلغ اٌّؾذد اٌّغبؽخ ٚ٠ّىٓ رظّ١ُ اٌىشاعبد ثؼذح ؿٛاثك.‬
              ‫3- رؾزٛٞ اٌّخبصْ اٌىج١شح ػٍٝ غشف اعزؼالِبد - ِـبػُ- ِمبٟ٘- ِظشف- ثٕه- ثش٠ذ- ِىبرت عفش- ع١ّٕب .... إٌخ.‬
                                                                             ‫4- اٌّؾالد اٌزغبس٠خ اٌظغ١شح رغّغ ػبدح ؽٛي ِشوض ِؼ١ٓ.‬
                                                           ‫5- ِٕبؿك اٌج١غ ٠غت أْ رىْٛ فٛق ثؼؼٙب ِٚذخٍٙب ألشة ِب ٠ّىٓ ِٕٙب.‬
                                   ‫6- اٌذٚس األسػٟ أفؼً ِٓ اٌـٛاثك اٌؼٍٛ٠خ ٌٍّج١ؼبد ٚغشف اٌزخض٠ٓ ؽزٝ رىْٛ ثبٌمشة ِٓ اٌشبسع.‬
                                  ‫7- اسرفبع اٌّخبصْ فٟ اٌـبثك األسػٟ (4 - 5) َ ٚفٟ اٌـٛاثك اٌؼٍ١ب (7.3-4)َ أِب األػٍٝ (3-4) َ.‬
                                                                                         ‫8- اٌؾغشاد اٌظغ١شح ٔبدسً ِب رىْٛ ػشٚس٠خ.‬
                                                                                                          ‫ا‬
                                                                                        ‫9- إٌٛافز فٛق ِغزٜٛ ػبٌٟ فٛق اٌشفٛف.‬
‫01- ػذد ٚارغبع اٌغالٌُ ثٛاعـخ إٌظبَ اٌزٞ ٠ٍّٟ ٚثؼغ األٔظّخ األٚسٚث١خ رؾذد 33% ِٓ ِغبؽخ األسع ٠ّىٓ أْ ٠غزؼًّ ٌّخبصْ‬
                                                                                                                ‫ٚؿبٚالد اٌج١غ.‬
‫(د)إٌمبؽ األعبع١خ اٌزٟ ٠غت ِشاػبرٙب فٟ رظّ١ُ اٌّشاوض اٌزغبس٠خ:‬

                  ‫1- أْ ٠ىْٛ اٌّٛلغ ِٕبعت ٌٍّٕـمخ اٌغىٕ١خ ٚوزٌه ٌٛعبئؾ إٌمً اٌؼبَ وّب ٠الؽظ اٌّشٚٔخ.‬
                                                          ‫2- ال ثذ ِٓ فظً ؽشوخ اٌّشبح ػٓ ؽشوخ اٌغ١بساد.‬
                                            ‫3- اٌؾشوخ أِبَ اٌّؾالد ٌٍّشبح فمؾ ِغ ػًّ اٌّظالد إٌّبعجخ.‬
                          ‫4- ٠غزؾغٓ أْ ٠ٛػغ اٌّشوض اٌزغبسٞ ِغ اٌخذِبد األخشٜ اٌزشف١ٙ١خ فٟ ِىبْ ٚاؽذ.‬
                                                 ‫5- ٠ذاس اٌّشوض ِٓ لجً اٌؾىِٛخ ٚاٌزؼبْٚ ِغ اٌّالن ٚاٌزغبس.‬
                                                  ‫6- ٠غت إثؼبد اٌّشوض ػٓ اٌـش٠ك اٌؼبَ ؽزٝ رزٛفش ٌٗ األِٓ.‬
‫7- ٠غت أْ ٠ىْٛ اٌـشاص اٌّؼّبسٞ ٚاؽذ. ٚرٌه ثأخز ؿبثغ إٌّـمخ اٌّٛعٛد ثٙب اٌّششٚع ٚاالٌزضاَ ػٕذ ثٕبء ٘زا‬
                                                                              ‫اٌّششٚع ثـبثغ ٘زٖ إٌّـمخ.‬
‫٘ـ - اٌّؼب٠١ش اٌزظّ١ّ١خ ٌٍغضء اٌزغبسٞ‬

                                                               ‫ٕ٘بن ػذح أِٛس ٠غت ِشاػبرٙب ػٕذ رظّ١ُ اٌّشاوض اٌزغبس٠خ:‬
                                   ‫1- اٌزشو١ض ػٍٝ ٚػغ اٌخذِبد ٚاألٔشـخ اٌؼبِخ ثؾ١ش رىْٛ ٚاػؾخ ٚفٟ ِزٕبٚي اٌغّ١غ.‬
‫2- ٠غت رظٕ١ف اٌّؾالد اٌزغبس٠خ اٌّزمبسثخ فٟ اٌؾشفخ ِغ ثؼؼٙب ٚػذَ خٍـٙب ٚإ٠غبد اٌؼاللخ اٌمٛ٠خ ث١ٓ اٌّؾالد‬
                                                                                  ‫اٌّزشبثٙخ ٚاٌّزمبسثخ فٟ اٌزغبسح.‬
                                  ‫3- ػذَ لـغ اٌزغٍغً اٌزغبسٞ فٟ اٌفشاغبد اٌّؼّبس٠خ ثبعزؼّبي فشاؽ آخش غ١ش رغبسٞ.‬
‫4- ِؾبٌٚخ عؼً اٌّّشاد اٌزغبس٠خ ِفزٛؽخ ِٓ عّ١غ األؿشاف ثؾ١ش رىْٛ راد ػشع ِٕبعت ثؾ١ش ٠ىْٛ ٕ٘بن‬
                                                                                      ‫أغ١بث١خ ٚرٛع١ٗ ٌؾشوخ اٌضثْٛ.‬
                                       ‫5- ٠غت أْ رظُّ اٌّشاوض اٌزغبس٠خ ثشىً ؽ١ذ ثؾ١ش رؼًّ ػٍٝ عزة اٌضثبئٓ.‬
                                           ‫6- ٠غت ِشاػبح اخز١بس شىً اٌّجٕٝ ثؾ١ش ٠ىْٛ ٕ٘بن ِالئّخ ِغ اٌّغبٚساد.‬
‫7- ٌٚزؾم١ك اٌغّبي فٟ اٌّشاوض اٌزغبس٠خ ٠غت ِشاػبح ِب ٠ٍٟ:‬
                                                                  ‫1- رأِ١ٓ اٌٛؽذح فٟ اٌّشوض اٌزغبسٞ ِٓ ؽ١ش ا٢رٟ:‬
                                                         ‫أ- فٟ اعزّشاس اٌخـٛؽ األفم١خ ٌٍغمٛف ٚاٌّظالد.‬
                               ‫ة- فٟ اعزؼّبي ِبدح ٚاؽذح أٚ اصٕز١ٓ ػٍٝ األوضش فٟ إوغبء اٌٛاعٙبد.‬
                                                                                    ‫2- إػـبء اٌّشوض ؿبثؼً ِؼّبس٠ً خبطً.‬
                                                                                     ‫ب ب‬           ‫ب‬
                                                                ‫3- اٌّم١بط ٠غت أْ ٠شؼش ثٗ اٌّشبح ٚساوت اٌغ١بسح.‬
                                      ‫4- اال٘زّبَ ثذساعخ اٌٛاعٙبد ِٓ ٔبؽ١خ اٌّظّذ ٚاٌّفزٛػ ِٚٛاد اٌجٕبء ... إٌخ.‬
‫8- اؽزٛاء اٌّزبعش اٌىجشٜ ٚرؾزٛٞ اٌّزبعش اٌىجشٜ طبالد ِذاٌٚخ ٚػشع، ِٚـبػُ، ِٚمبٟ٘، ٚؽذائك أؿفبي، ِٚظبسف، ِٚىبرت‬
‫ثش٠ذ، ٚٚوبالد عفش، ٚطبالد ع١ّٕب ِٚالٟ٘، ٚأِبوٓ خؼشاء، ٚال ٕٔغٝ ٚعٛد ِغغذ أٚ ِظٍٝ. ٚ٠غت أ٠ؼً ٚعٛد ِزبعش طغ١شح‬
                 ‫ب‬
                                                                                          ‫ِؼضٌٚخ ٌٍض١بة ػبدح ؽٛي اٌّشاوض اٌزغبس٠خ.‬
‫9- رٛػغ طبالد اٌج١غ ِجبششح اٌٛاؽذح فٛق األخشٜ ٚلش٠جخ لذس األِبوٓ ِٓ ؿبثك اٌّذخً ِٚٓ األفؼً إٔشبء ؿبثك إػبفٟ إٔشبء‬
                    ‫طبالد اٌج١غ رؾذ األسع ٚرغزؼًّ اٌـٛاثك اٌؼٍٛ٠خ ٌٍّغزٛدػبد ٚطبالد اٌّٛظف١ٕٓ ٚفٟ اٌـبثك األخ١ش اإلداسح.‬
‫صبٔ١ً: اٌّؼب٠١ش اٌزخـ١ـ١خ ٚاٌزظّ١ّ١خ ٌٍغضء اٌغىٕٟ‬
                                                                  ‫ب‬

                                                                                                                        ‫أ- اٌزٛع١ٗ:‬
‫٠زُ رٛع١ٗ اٌٛؽذاد اٌغىٕ١خ ثشىً ػبَ ٔؾٛ االرغبٖ اٌغٕٛثٟ اٌششلٟ أٚ اٌغٕٛثٟ اٌغشثٟ ٚ٠زُ رفبدٞ اٌزٛع١ٗ اٌشّبٌٟ ٚفشٚػٗ‬
                                                                ‫فٟ اٌ١ّٓ ٚرٌه ثغجت اٌش٠بػ اٌغبئذح اٌشّبٌ١خ اٌششل١خ اٌؼبسح.‬
                                                                                                          ‫ة- اٌخذِبد اٌّزٛفشح :‬
                                                                                           ‫1- عالٌُ ِٚظبػذ وٙشثبئ١خ.‬
                                                                          ‫2- ِشاػبح ٚعٛد رظش٠ف ع١ذ ِٚؼبٌظ ٌٍمّبِخ.‬
                                                         ‫3- ثٕ١خ رؾز١خ ٌٍّششٚع ٚرٌه ِٓ خالي اخز١بس ِٛفك ٌٍّٛلغ.‬
                                            ‫4- عالٌُ ٘شٚة رٛفش اٌؾّب٠خ ٚاألِبْ ٌٍغبوٓ أصٕبء ؽذٚس ؽش٠ك أٚ صٌضاي.‬
                                 ‫5- رٛفش داس ٌٍؼجبدح "ِغغذ أٚ ِظٍٝ" فٟ ؽبٌخ ٚلٛع اٌّششٚع ثؼ١ذً ػٓ أؽذ ٘زٖ اٌذٚس.‬
                                                     ‫ا‬
                                                                            ‫6- ِغبؽخ ٚأِبوٓ خؼشاء ِّٚشاد ِشبح.‬
                                                                                                             ‫ط- اٌّذاخً ٚاٌّخبسط:‬
               ‫1- ٠غت أْ رٛفش اٌّذاخً ٚاٌّخبسط ٌٍغضء اٌغىٕٟ خظٛط١خ ربِخ ِٓ خالي ػضٌٙب ػٓ ثبلٟ أعضاء اٌّغّغ.‬
                                                               ‫2- أْ رىْٛ ِزظٍخ ارظبي ِجبشش ثّٛالف اٌغ١بساد.‬
                                                             ‫3- ِشاػبح ارظبٌٙب ِغ اٌغضء اٌزغبسٞ ِغ رؾم١ك اٌخظٛط١خ.‬
‫د- ِٛالف اٌغ١بساد:‬
‫1- أْ رىْٛ ِؼضٌٚخ ٚخبطخ ثبٌغىبْ فمؾ ِٚزظٍخ ارظبي ِجبشش ِغ ِخبسط ِٚذاخً اٌشمك اٌغىٕ١خ.‬
                                                   ‫2- رأخز وّؼ١بس ِٛلف ع١بسح ٌىً شمخ.‬
                                 ‫3- سثـٙب ثّّشاد ِشبح ِغـبح ِٚؾّ١خ ِٓ اٌّـش ٚاٌشّظ.‬
                                                                              ‫٘ـ- اٌخظٛط١خ:‬
                     ‫1- ػبًِ اٌخظٛط١خ فٟ ِضً ٘زٖ اٌّشبس٠غ ٠غت أْ ٠شاػٝ ثشىً أعبعٟ.‬
           ‫2- اٌّؾبفظخ ػٍٝ اٌخظٛط١خ فٟ ٘زا اٌغبٔت ع١غؼً ِٓ ٘زا اٌّشوض ِشوضً ؽ١ٛ٠ً ٚٔشـً.‬
            ‫ا ب ب‬
‫صبٌضً- اٌّؼب٠١ش اٌزظّ١ّ١خ ٚاٌزخـ١ـ١خ ٌٍغضء اإلداسٞ‬
                                                                       ‫ب‬

‫1- رؼزّذ اإلػبءح فٟ اٌّجبٟٔ اإلداس٠خ ػٍٝ اإلػبءح اٌـج١ؼ١خ اٌّجبششح أٚ غ١ش اٌّجبششح ٚ٘زٖ رىْٛ ِٓ خالي فزؾبد اٌؾٛائؾ اٌغبٔج١خ‬
                             ‫ؽ١ش ٠ؼزجش االرغبٖ اٌغٕٛثٟ ِظذس أشؼخ اٌشّظ ٚرؼزّذ وّ١خ اإلػبءح ػٍٝ أثؼبد اٌشجبث١ه ِٚٛلؼٙب فٟ اٌغذساْ.‬
‫2- رؼزّذ اٌزٙٛ٠خ فٟ اٌّجبٟٔ اإلداس٠خ ػٍٝ اٌزٙٛ٠خ اٌّجبششح ٚاٌزٟ رىْٛ ِٓ خالي اٌفزؾبد ؽ١ش رؼزجش ارغبٖ اٌشّبي ٘ٛ ِظذس ؽشوخ‬
                                                                                                                          ‫اٌٙٛاء األعبع١خ.‬
            ‫3- ػبدح رىْٛ اٌّجبٟٔ اإلداس٠خ رٛع١ٗ ثؾ١ش ٠زٛفش ِٓ خالٌٗ اإلػبءح ٚاٌزٙٛ٠خ إٌّبعجخ ٌىً ِىْٛ ِٓ ِىٛٔبد اإلداسح اٌزٟ ٟ٘ :‬
‫غشف ِىبرت - عىشربس٠خ- ِىبرت أخشٜ- ؽّبَ - ِـجخ . ٚػبدح رىْٛ اٌؾّبِبد ٚاٌّـبثخ فٟ اٌزٛط١خ إٌٝ داخً اٌّجبٟٔ اإلداس٠خ‬
                                                                                                       ‫رؼبء ٚرزٜٙٛ ِٓ ِٕبٚس خبطخ ثٙب.‬
‫4- اٌؼضي اٌظٛرٟ ٠ؼزجش ُِٙ فٟ ػٕبطش اٌّجبٟٔ اإلداس٠خ ثؾ١ش ال ثذ ِٓ فظً اٌغضء اٌّضػظ ػٓ اٌٙبدا ثؾ١ش ٠ؼزجش ث١ذ اٌغٍُ‬
                     ‫(وٛس اإلٔشبء) ٘ٛ اٌغضء اٌّضػظ ٌٙزا ال ثذ ِٓ فظً اٌغضء اٌٙبدا (ِىبرت إداس٠خ) ػٓ (اٌىٛس اإلٔشبئٟ) ثٛعٛد فشاغبد أخشٜ.‬
                ‫5- ٠غت أْ رىْٛ اٌؾشوخ داخً اٌّجبٟٔ اإلداس٠خ ٚاػؾخ ٚعٍٙخ ٚ٘زا ٠أرٟ ِٓ خالي اٌؼاللبد اٌٛظ١ف١خ ٌؼٕبطش اٌّجبٟٔ اإلداس٠خ.‬
‫6- ٌٍّجبٟٔ اإلداس٠خ ِذخً سئ١غٟ ٚ٘زا ٠ىْٛ ِٓ ٚاعٙخ سئ١غ١خ أٚ عبٔج١خ ٚلذ ٠ىْٛ ِـً ػٍٝ عبؽخ ٚ٘زا ٠خزٍف فٟ اٌزظّ١ُ‬
                                                                                                             ‫اٌّؼّبسٞ ٌىً ِٓ اٌضٚا٠ب.‬
‫7- ٌٍّجبٟٔ اإلداس٠خ أشىبي ِخزٍفخ فبٌّجٕٝ اإلداسٞ ٠ىْٛ ػٍٝ شىً ِشثغ أٚ ِغزـ١ً أٚ ػبدح ِب رىْٛ ٘زٖ األشىبي ػٍٝ ؽشف "‪”U‬‬
                                                                                                            ‫أٚ ِبٚ "‪ "T‬أٚ أشىبي ِؼٍؼخ.‬
‫8- ػٕذ ؽغبة أثؼبد اٌّجٕٝ اإلداسٞ ٠غت أْ ٠ؤخز ثؼ١ٓ االػزجبس – اٌّغبفخ اٌالصِخ ٌؾشوخ اإلٔغبْ داخً لؼبء ِؼ١ٓ- اٌّغبفخ‬
‫اٌالصِخ اٌفبطٍخ ث١ٓ ػٕبطش اٌفشػ اٌؼبِخ ٚثٙزا رغزـ١غ أْ رؼشف ِب ٟ٘ اٌّغبفخ اٌالصِخ اٌزٞ ٠ؾزبعٙب وً ِىْٛ ِٓ ِىٛٔبد‬
                                                                                                                         ‫اٌّجٕٝ اإلداسٞ.‬
‫ساثؼً- اٌّؼب٠١ش اٌزظّ١ّ١خ ٌٍّـؼُ:‬
                                                                 ‫ب‬

‫1- ٠فؼً أْ رىْٛ إػبءح اٌّـؼُ ؿج١ؼ١خ عٛاء وبٔذ ِجبششح أَ غ١ش ِجبششح ٚ٘زا ٠ىْٛ ِٓ خالي رٛع١ٙٙب ٌّظذس اٌشّظ ٟٚ٘‬
                                                                                                ‫عٙخ اٌغٕٛة اٌششلٟ أٚ اٌغٕٛة اٌغشثٟ.‬
‫2- رىْٛ رٙٛ٠خ اٌّـبػُ ػبدح رٙٛ٠خ ؿج١ؼ١خ ٚ٘زٖ ِٓ خالي اٌفزؾبد ؽ١ش ٠ّىٓ اٌزؾىُ فٟ وّ١خ اٌزٙٛ٠خ ِٓ خالي رؾىّٕب فٟ ؽغُ‬
                                                                                       ‫اٌفزؾبد ِٚٛلؼٙب ثبٌٕغجخ ٌٍغذاس ٚاٌّغبفخ ف١ّب ث١ُٕٙ.‬
‫3- ٠فؼً أْ ٠ىْٛ رٛع١ٗ طبٌخ اٌّـؼُ ِٓ عٙخ اٌغٕٛة أٚ اٌغٕٛة اٌششلٟ أٚ اٌغٕٛة اٌغشثٟ ٌٕؾظً ػٍٝ اإلػبءح ٚاٌزٙٛ٠خ اٌالصِز١ٓ‬
                                        ‫ٌٙب، أِب ثبٌٕغجخ ٌخذِبرٙب األخشٜ (ِخبصْ ، إداسح ، ؽّبِبد) ف١ّىٓ أْ رىْٛ فٟ اٌغٙخ اٌشّبٌ١خ.‬
                                             ‫4- ال رؾزبط طبالد اٌّـؼُ إٌٝ ػضي طٛرٟ ؽ١ش أٔٙب رؼزجش ػٕظش رغّغ ال ٠ؾزبط إٌٝ اٌٙذٚء.‬
‫5- ال ثذ أْ ٠ىْٛ ٕ٘بن فظً ث١ٓ ؽشوخ إٌبط ٚدخٌُٛٙ إٌٝ طبٌخ اٌّـؼُ ٚؽشوخ اٌؼبٍِ١ٓ فٟ ِـجخ اٌّـؼُ ثؾ١ش ال رخزٍؾ اٌؾشوز١ٓ‬
                                                                                                    ‫ٌزغٕت أٞ ٔٛع ِٓ اإلسثبن أٚ اإلصدؽبَ.‬
‫6- ٠خظض ػبدح ِذخً خبص ٚخذِٟ ٌذخٛي اٌجؼبئغ إٌٝ ِخبصْ اٌّـؼُ ٚخبص أ٠ؼً ثذخٛي اٌؼبٍِ١ٓ، ِٚذخً آخش ٌذخٛي اٌـالة ٚاٌضٚاس‬
                                                 ‫ب‬
                               ‫ٚؽ١ش ال ثذ أْ ٠ىْٛ اٌّذخً اٌشئ١غٟ ٚاػؼ ٚظب٘ش ثؼىظ اٌّذخً اٌخذِٟ اٌزٞ ٠غت أْ ٠ىْٛ عبٔجٟ.‬
‫7- رؾغت أثؼبد ِٚغبؽخ اٌّـؼُ ػٍٝ أعبط ِب ٠غزٛػجٗ اٌّـؼُ ِٓ أشخبص ؽ١ش ٠زُ ؽغبة ِغبؽخ ِغ األخز ثؼ١ٓ اإلػزجبس اٌّغبؽخ‬
                                                           ‫اٌالصِخ ٌألصبس ٚؽشوخ اٌؼبٍِ١ٓ ٚاألشخبص ٚؽغبة اٌّغبؽخ اٌالصِخ ٌٍخذِبد.‬
‫8- ٕ٘بن ؽش٠خ ربِخ فٟ اخز١بس شىً طبالد اٌّـؼُ ف١ّىٓ أْ رىْٛ راد شىً اػز١بدٞ (ِشثغ أٚ ِغزـ١ً) ٚ٠ّىٓ أْ رىْٛ رٚ‬
                                                                                         ‫شىً ِزّ١ض (األشىبي اٌّؼٍؼخ ٚاٌذائش٠خ ٚغ١ش٘ب).‬
‫خبِغً - اٌّؼب٠١ش اٌزظّ١ّ١خ ٚاٌزخـ١ـ١خ ٌٍؾذائك ِٚٛالف اٌغ١بساد‬
                                                              ‫ب‬

                                                                                           ‫اٌؾذائك :-‬
‫ّٔؾ اٌؾذ٠مخ ٠فؼً أْ رىْٛ اٌؾذائك ِغّؼخ ثؾ١ش رزغّغ ؽٌٛٙب اٌىزً األخشٜ ٚ٠ّىٓ أْ ٠ىْٛ فؼبء اٌؾذ٠مخ‬
‫٠أد فٟ اٌّؾٛس األعبعٟ ٌٍّٛلغ ثؾ١ش ٘زا اٌّؾٛس ٠ٕزٟٙ فٟ األخ١ش رٚ أّ٘١خ فٟ اٌّششٚع ٚ٠ّىٓ أْ رىْٛ‬
‫اٌؾذ٠مخ ػجبسح ػٓ ػذح أعضاء ثؾ١ش وً عضء ٠ٍزف ؽٌٛٗ ػذح وزً ثبإلػبفخ إٌٝ ٚعٛد ؽذائك ِزٕبصشح رؼزجش أِبوٓ‬
                                                                              ‫عٍٛط اٌؼبٍِ١ٓ ٚاٌضٚاس.‬

                                                                               ‫ِٛالف اٌغ١بساد:-‬
‫رخظض ػبدح ِٛالف ٌٍغ١بساد ثؾ١ش رخذَ ع١بساد اٌغىبْ ٚاٌضٚاس ٚاٌؼبٍِ١ٓ ٚ٘زٖ اٌّٛالف ػبدح رىْٛ ِٛصع‬
‫ؽٛي اٌّششٚع ثشىً ِزٕبعك ٕٚ٘بن أ٠ؼً ِٛالف رخظض ٌغ١بساد اٌخذِخ اٌىج١شح. ٚػبدح رىْٛ ٘زٖ اٌّٛالف‬
                                                           ‫ب‬
‫إِب ثبٌضاٚ٠خ 09 أٚ ِبئٍخ اٌضاٚ٠خ "03 أٚ 06" ِغ ِشاػبح أْ رخظض ٌٙزٖ اٌّٛالف ِّشاد خذِ١خ فٟ ؽبٌخ ٚعٛد‬
                                                                              ‫ػـً ٌٙزٖ اٌغ١بساد.‬
‫6- اٌىبفز١ش٠ب:‬

                                             ‫اٌٙذف ِٕٙب:‬
‫رمذ٠ُ اٌّششٚثبد ٚاٌّشؿجبد ٚاٌٛعجبد اٌخف١فخ ٚوزا‬
‫ٚعجٗ اإلفـبس ٚرمذَ خذِبرٙب ٌضٚاس اٌّزؾف ٚوزا ٌّٛظفٟ‬
                                          ‫اٌّزؾف.‬
                                 ‫ِؼ١بس ػبَ ٌزأص١ش اٌىبفز١ش٠ب:‬
‫1- ٠ّىٓ اعزخذاَ ؿش٠مخ اٌىبٚٔزش اٌّشزشن ٌٍزٛص٠غ ٔظشً ٌمظش‬
       ‫ا‬
                          ‫اٌٛلذ اٌزٞ ٠ّىضٗ اٌضثبئٓ.‬
‫2- ٠زُ رٛص٠غ اٌـبٚالد ٚاٌىشاعٟ ثؾ١ش رّىٓ ِٓ اٌغٍٛط‬
‫اٌّش٠ؼ أصٕبء رٕبٚي اٌـؼبْ ٚثؾ١ش ٠زُ رٛف١ش األثؼبد‬
‫ٚاٌّغبفبد اٌالصِخ ٌؾشوخ األشخبص ٚوزا ٌٍزخذ٠ُ، وّب ٘ٛ‬
                                     ‫ِٛػؼ ثبٌشعِٛبد .‬
‫ربعؼً- اٌىشاط:‬
         ‫ب‬
‫انباب : انسادس‬
‫(انفرش جلميع مكىنات ادلشروع)‬
‫أٚ ً : اٌّشاوض ٚاٌّؾالد اٌزغبس٠خ :‬
                              ‫ال‬
‫2- اٌغضء اإلداسٞ‬
‫3- اٌغضء اٌغىٕٟ‬
‫اٌّـجخ‬
‫اٌؾّبِبد‬
‫ِىّالد إٌّبؿك اٌخؼشاء‬
‫اٌّـؼُ‬
‫ّٔبرط ٌزغٙ١ضاد ِٕـمخ اٌزخذ٠ُ:‬
‫ِٛالف اٌغ١بساد‬
‫رٕـ١ك ِٛلغ اٌّششٚع‬

 ‫ِٛالف ع١بساد‬                          ‫1- اٌغضء اٌزغبسٞ‬
‫خبطخ ثبٌغضء اٌزغبسٞ‬
                                      ‫2- اٌغضء اإلداسٞ‬
                                      ‫3- اٌغضء اٌغىٕٟ‬

                      ‫1‬
                          ‫2‬

                              ‫3‬
                                     ‫ِغبؽبد خؼشاء‬
‫اٌخبرّخ‬
‫فٟ ٔٙب٠خ ٘زٖ اٌذساعخ اٌزؾٍ١ٍ١خ ٚطٍٕب إٌٝ ٔز١غخ رج١ٓ ٌٕب أّ٘١خ ٘زا اٌّششٚع ِٓ إٌبؽ١خ‬
‫اٌزظّ١ّ١خ ٚاٌزخـ١ـ١خ ٚثبٌّغزٜٛ اٌزٞ ٠غت أْ ٠زُ رٕف١ز ٘زا اٌّششٚع، ؿجمً ألػٍٝ‬
        ‫ب‬
‫اٌّؼب٠١ش ٢ْ ٘زا اٌّششٚع ٠غٍت ػٍ١خ اٌغبٔت اٌزغبسٞ اٌزٞ ع١شعغ ثؼبئذ ػخُ ٌٍزٞ‬
                                                          ‫ع١زٌٛٝ رٕف١ز ٘زا اٌّششٚع.‬

‫اٌشٟء اٌُّٙ ٘ٛ إٔٔب إٌّّٔب ثمذس وج١ش ِٓ ٘زا اٌذساعخ ِٓ ٔبؽ١خ اٌّغبؽبد ٚاٌّىٛٔبد‬
            ‫ٚاٌّؼب٠١ش اٌزظّ١ّ١خ ٚاٌزخـ١ـ١خ ٚأ٠ؼً اٌذساعخ إٌّبخ١خ اٌزٟ رخض ِٛلؼٕب ٘زا.‬
                                                  ‫ب‬

             ‫ٔغأي اهلل أْ ٠غزف١ذ ِٓ ٘زٖ اٌذساعخ أوجش لذس ِّٓ ٠ٙزّْٛ ثٙزٖ اٌّشبس٠غ.‬
‫اٌّشاعغ‬
                                     ‫• ػٕبطش اٌزظّ١ُ اٌّؼّبسٞ ( ‪. ) ERNST NEUFERT‬‬
                                                                        ‫• ‪. TIME SAVER‬‬
                                                                              ‫• ِغٍخ اٌجٕبء‬
                                                                          ‫• دساعبد عبثمخ‬
‫• وزبة األثٕ١خ اٌغىٕ١خ اٌزغبس٠خ اإلداس٠خ (رأٌ١ف َ /ِؾّذ ِبعذ خٍٛطٟ) داس لبثظ -ٌجٕبْ ث١شٚد‬
                                                                                      ‫8991.‬
   ‫• عٍٛن رشى١ً اٌفؼبءاد اٌّؼّبس٠خ فٟ اٌؼّبسح اٌ١ّٕ١خ اٌـ١ٕ١خ ثؾش ِمذَ ٌّؤرّش اٌؼّبسح‬
                                                                                      ‫اٌـ١ٕ١خ‬
                                                     ‫ع١ئْٛ - ؽؼشِٛد (01-2002/21َ )‬
بحث لتصميم برج تجاري إداري سكني

بحث لتصميم برج تجاري إداري سكني

  • 1.
    ‫كلية العلوم واهلندسة‬ ‫قسن العمارة‬ ‫• إشراف:‬ ‫• إعداد الطالب:‬ ‫د/ سمٌر السـ ـ ـ ـ ـ ـ ـ ـ ـ ـ ـ ـ ـ ــري‬ ‫اًمن عبدهللا ب ـ ـ ــشر‬ ‫طه حسٌـ ـ ـ ـ ــن ؾروان‬ ‫م/ موٌؽ شمس الدًن‬ ‫عبدالرحمن القدسي‬ ‫ضٌؽ هللا الشـ ــرًؽ‬ ‫م/ محمد ع ـ ـ ـ ـ ـ ـ ـ ـ ـ ـ ـ ـ ــواس‬ ‫احمـ ــد عـ ـ ـ ـ ـ ـ ـ ـ ـ ـ ــواس‬ ‫دال ـ ـ ـ ـ ـ ـ ـ ـ ـ ـ ــد سٌالن‬ ‫عبـ ـ ـ ـ ـ ــدالؼوي الٌتٌم‬ ‫المٌن عبدهللا قاًد‬
  • 2.
    ‫مقدمة‬ ‫‪ ‬اٖتِ اإلْطإَٓر ايكدّ بتبادٍ ايطًع ٚأختاز ايطاحات ايعاَ١ املسنصٜ١ ٚاملؿتٛح١ أحٝاْاً‬ ‫هلرٙ ايػاٜ١ ٚعً٢ َس ايعضٛز أخرت ٖرٙ ايطاحات تصداد أُٖٝ١ ٚقد ٚصًت يف ايٛقت‬ ‫اذتاعس إىل إٔ تهٕٛ َٔ أِٖ املٛاعع اٖتُاَا حٝح ناْت ٖرٙ ايطاحات يف َسانص املدٕ‬ ‫عً٢ األغًب ٚمل تبك٢ ٖرٙ ايطاحات زتسد أَهٓ٘ يتبادٍ املٛاد ٚايطًع بٌ أخرت طابع‬ ‫آخس ٖٛ ايطابع ارتدَٞ ٚايرتؾٝٗٞ. ٚيكد ْظُت ٖرٙ األضٛام بػهٌ ٜؤدٟ ايٛظٝؿ١ ٚاملتع١‬ ‫ٚايتطًٝ١ َعاً . ٚٚدد إٔ اضتعُاٍ ٖرٙ األَانٔ (املسانص) َٜٛٞ ٚدا٥ِ . ٜٚكغٞ ؾٝٗا ايٓاع‬ ‫ؾرت٠ َٔ ٚقتِٗ َٚٔ ٖٓا دا٤ت أُٖٝ١ ٖرٙ املسانص اييت تًعب ؾٝٗا ايتذاز٠ ايدٚز األنرب‬ ‫ْٚتٝذ١ يًُٓٛ املتصاٜد ٚايتطٛز ايطسٜع ٚايتٛضع ايطسٜع يف َدٜٓ١ صٓعا٤ ؾإٕ املتطًبات تصداد‬ ‫باعطساد مما ٜٛدب تصٜٚد املدٜٓ١ مبسانص تكًٌ َٔ ايعب٤ ايتخدميٞ ملسانص املدٜٓ١ .‬
  • 3.
    ‫أهمية املشروع‬ ‫‪ْ ‬ظسايًُػانٌ اييت تعاْ٢ َٓٗا املدٕ يف ْكط ارتدَات ايغسٚزٜ١ يف تٓظِٝ غؤٕٚ‬ ‫اإلْطإ مما ٜعط٢ ذيو إىل تؿهو ٚععـ املدٜٓ١ نٕٛ اإلْطإ ٖٛ ايداؾع ايكٛ٣ يف زؾع‬ ‫غؤْ٘ َٔ مجٝع ايٓٛاحٞ ايبازش٠ هلا؛ ٚيٝظ هلا ٚدٛد.‬ ‫‪ َٔٚ ‬ذيو املٓطًل ٚدب تٛؾس َبٓ٢ جتاز٣ ضهٓ٢ إداز٣ يف َدٜٓ١ صٓعا٤ ملا يف ذيو‬ ‫َٔ دٚز بازش يف زؾع مجٝع ارتدَات ايغسٚزٜ١ عٝح حيكل األدا٤ ادتٝد ملا ؾٝ٘ صاحل‬ ‫املٛاطٔ ٚايدٚي١.‬ ‫‪ْٚ ‬تٝذ١ ألُٖٝ١ ٖرا املػسٚع يف احتالٍ دٚز ٚزَص بازش يف َدٜٓ١ صٓعا٤ جيب تٛؾس‬ ‫املالَح ٚاملؿسدات املعُازٜ١ ادتًُٝ١ هلرا املعٓ٢ .‬
  • 4.
    ‫األهداف‬ ‫األٖداف ايعاَ١ :‬ ‫‪‬‬ ‫1ـ ضٗٛي١ تكدِٜ ارتدَات يًُٛاطٓني.‬ ‫2ـ ضٗٛي١ املتابع١ ٚاألغساف ايؿعًٞ عً٢ مجٝع املهاتب يتخطني اإلداز٠ ٚتطٜٛسٖا .‬ ‫3ـ شٜاد٠ ٚحتطني األدا٤ ايٛظٝؿٞ يًعاًَني ٚذيو رتدَ١ املٛاطٓني .‬ ‫4ـ ٚدٛد َبٓ٢ َتهاٌَ بايطساش املعُازٟ ايُٝٓ٢ املتُٝص ايرٟ ضٝعط٢ زٚحا ٚطابعا َعُازٜا حغازٜا َتُٝصا‬ ‫يًُدٜٓ١ .‬ ‫5ـ تٛؾري ايساح١ ايهاًَ١ يًُٛظؿني يف األبساج اإلدازٜ١ .‬ ‫6ـ تٛؾري ايساح١ ايٓؿطٝ١ يًطانٓني يف األبساج ايطهٓٝ١ .‬ ‫7ـ حتكٝل ايهؿا٤٠ االقتضادٜ١ ٚذيو باالضتػالٍ ادتٝد يألدٚاز .‬ ‫األٖداف ارتاص١ :‬ ‫‪‬‬ ‫1ـ املػازن١ يف إعاؾ١ دزاض١ ددٜد٠ يًُهتب١ حت٢ ٜطتؿٝد َٓٗا ايطالب يف املساحٌ األخس٣ .‬ ‫2ـ تكدِٜ منٛذج ؾعً٢ ميهٔ إٕ ٜطبل يف ازض ايٛاقع .‬ ‫3ـ اإلضٗاّ يف يؿت ْظس ايدٚي١ يألُٖٝ١ ٖرا املػسٚع.‬ ‫4ـ شٜاد٠ املعًَٛات يف تضُِٝ ٖرا املػسٚع.‬ ‫5ـ اإلملاّ ظٛاْب ٖرا املػسٚع ٚاضتهُاٍ دٛاْب ايتكضري يف املػازٜع األخس٣.‬
  • 5.
    ‫انباب األول‬ ‫انذراسة انتحهيهية نهمىقع‬ ‫(ادلىقع – ادلساحة – اجملاورات – ادلذاخم – احلركة – انضىضاء)‬
  • 6.
    ‫أٚ ً: ِٛلغاٌّششٚع :‬ ‫ال‬ ‫ٜكع املػـسٚع يف ايعاصـُ١ ايُٝٓٝـ١ صـٓعا٤ يف‬ ‫‪‬‬ ‫ادتٗــ١ ادتٓٛبٝــ١ ايػسبٝــ١ َٓٗــاد يف حــٞ حــد٠‬ ‫املدٜٓــ١د اذتــٞ ايؿًطــطٝا ضــابكاًد دٓــٛبٞ‬ ‫غازع دَػـل ايتذـازٟ (غـازع حـد٠ املدٜٓـ١‬ ‫حايٝــاً) د غــسم غــازع إٜــسإد تعتــرب ٖــرٙ‬ ‫املٓطكــ١ َــٔ أنجــس املٓــاطل ايساقٝــ١ يف َدٜٓــ١‬ ‫صٓعا٤ َٔ ايٓاحٝ١ ايتذازٜ١ ٚايطهٓٝ١ أٜغاًد‬ ‫ؾٗــٞ حتتــٟٛ عًــ٢ ضــؿازات عسبٝــ١ ٚأدٓبٝــ١‬ ‫َٚبــاْٞ يػــسنات ٚعــدد نــبري َــٔ ايؿٓــادم‬ ‫ٚاملبــاْٞ ايرتؾٝٗٝــ١ َجــٌ ايٓــٛادٟ ٚاملطــاعِد‬ ‫ٚأٜغاً تهجس ؾٝٗا َٓاشٍ ايتذاز ٚاملط٦ٛيني يف‬ ‫ايدٚي١د ٚؾٝٗا عد٠ َسانص جتازٜ١ َٚعازضد‬ ‫ٚأغًب ضانٓٝٗا ٜعتربٕٚ َٔ ايطبك١ ايساقٝ١د‬ ‫ٚذيــو َــا جيعــٌ ملػــسٚعٓا أُٖٝــ١ نــبري٠ يف‬ ‫ايعٓاٜـــ١ بتضـــُُٝ٘ َٚساعـــت َتطًبـــإ َـــٔ‬ ‫ضٝطتؿٝد َـٔ ٖـرا املػـسٚع اهلـاّد ٚتٓؿٝـرٙ‬ ‫مبطتٛ٣ ًٜٝل باملٛقع ايرٟ ضٝكاّ عًٝ٘.‬
  • 7.
    ‫ِغبؽخ أسع اٌّششٚعٚأؿٛاٌٙب ٚاٌشٛاسع اٌّؾ١ـخ ثٙب :‬ ‫تبًؼ َطاح١ أزض املػسٚع حٛايٞ 1376ّ2 َا‬ ‫‪‬‬ ‫ٜعـــادٍ 5.151 يبٓـــ٘د ٜٚبًـــؼ طـــٍٛ ايٛادٗـــ١‬ ‫ايػـــُايٝ١ ايػسبٝـــ١ املطًـــ١ عًـــ٢ غـــازع دَػـــل‬ ‫04.83ّد َٚٔ دٗ١ ايهٛزْس 02ّد َـٔ ادتٗـ١‬ ‫ايػسبٝــ١ ايٛاقعــ١ عًــ٢ غــازع إٜــسإ 04.321ّد‬ ‫َٚٔ ادتٗ١ ادتٓٛبٝ١ ايٛاقع١ عً٢ ايػـازع املتؿـسع‬ ‫‪38.40m‬‬ ‫َٔ غازع إٜسإ 05.54 ّد َٚـٔ ادتٗـ١ ايػـسقٝ١‬ ‫‪17.30m‬‬ ‫03.301 ّد َٚٔ دٗ١ املدخٌ ايؿسعٞ ايٛاقع يف‬ ‫دٓــٛب غــسم 03.71 ّد َٚــٔ ادتٗــ١ ايػــسقٝ١‬ ‫ايػـــــُايٝ١ ايـــــيت ظاْـــــب ايؿـــــٝال ايطـــــهٓٝ١‬ ‫‪103.80m‬‬ ‫08.63 ّدأَا بايٓطب١ يًػٛازع احملٝطـ١ بـاألزض‬ ‫ؾٗٓــاى غــازع دَػــل ٜٚعتــرب ايػــازع ايس٥ٝطــٞ‬ ‫‪20.00m‬‬ ‫يًُػــسٚع ٜٚبًــؼ عــسض ايػــازع 03ّد ٖٚٓــاى‬ ‫غازع َتؿسع َٓ٘ ٖٚٛ غازع إٜسإ ٜٚبًؼ عسعـ٘‬ ‫02 ّد ٚايػازع املتؿسع َٔ غازع إٜسإ ٖٛ غازع‬ ‫ؾسعٞ ٜبًؼ عسعـ٘ 01 ّد ٖٚٓـاى غـازع خًؿـٞ‬ ‫يًُػسٚع َٔ دٗ١ ايػـسم ٜبًـؼ عـسض ايػـازع‬ ‫01ّ.‬ ‫‪123.40m‬‬ ‫‪45.50m‬‬
  • 8.
    ‫اٌشٛاسع اٌّؾ١ـخ ثأسعاٌّششٚع:‬ ‫‪30m‬‬ ‫‪10m‬‬ ‫‪15m‬‬ ‫‪10m‬‬ ‫‪20m‬‬
  • 9.
    ‫اٌّؾ١ـبد ثأسع اٌّششٚع:‬ ‫فندق سلاي الين‬ ‫فيال سلنية‬ ‫سوبر ماركت سام سنرت‬ ‫فيال سلنية‬ ‫معرض لبيع السجاد‬
  • 10.
    ‫اٌّذاخً اٌّزٛفشح ٌٍّششٚعؽبٌ١ً:‬ ‫ب‬ ‫حتتٟٛ أزض املػسٚع عً٢ ثالث١‬ ‫‪‬‬ ‫َداخٌ نبري٠ إىل حداً َاد تطُح‬ ‫بدخٍٛ املػا٠ ٚايطٝازاتد ؾؿـٞ‬ ‫ادتٗـــ١ ايػـــُايٝ١ ٜٛدـــد َـــدخٌ‬ ‫ز٥ٝطٞ يدخٍٛ ايطٝازات يًطٛبس‬ ‫َازنتد ٚيف ادتٗ١ ايػسبٝ١ ٜٛدد‬ ‫ٖٓـــاى شتـــسج ٜـــؤدٟ إىل غـــازع‬ ‫إٜـــسإد ٖٚٓـــاى َـــدخٌ ثـــاْٟٛ‬ ‫ٜعُــــــٌ عًــــــ٢ زبــــ ـ األزض‬ ‫بايػٛازع ارتًؿٝ١د ٜٚطـتؿٝد َـٔ‬ ‫ٖـــرا املـــدخٌ ضـــهإ املٓـــاشٍ يف‬ ‫ادتٗـــ١ ايػـــسقٝ١ َـــٔ املػـــسٚعد‬ ‫ٚيهــٔ ميهــٔ اضــتخداخ َــداخٌ‬ ‫تؿٝد املػسٚع ايـرٟ ضـٝكاّ عًـ٢‬ ‫ٖــــرٙ األزضد ؾــــٝهُٔ عُــــٌ‬ ‫َدخٌ َٔ ادتٗـ١ ادتٓٛبٝـ١ ٜـؤدٟ‬ ‫إىل األبـــــــساج ايطـــــــهٓٝ١ أٚ أٟ‬ ‫ٚعــــٝؿ١ ميهــــٔ إعــــاؾتٗا أثٓــــا٤‬ ‫ايتضُِٝ.‬
  • 11.
    ‫أسع اٌّششٚع ثٛػؼٙباٌؾبٌٟ:‬ ‫‪ ‬األزض يف ايٛقــــت اذتــــايٞ‬ ‫َطتأدس٠ َٔ قبٌ تـادس بٓـ٢‬ ‫ؾٝٗـــا ضـــٛبس َازنـــت َـــٔ‬ ‫اهلٓذـــــسد ٜطـــــُ٢ ضـــــٛبس‬ ‫َازنت ادتٓدٍٚد ٚخضط‬ ‫املطـــاح١ ايػـــُايٝ١ يٛقـــٛف‬ ‫ايطــٝازات ايــيت تطــتؿٝد َــٔ‬ ‫ٖرا ايطٛبس َازنتد أَـا يف‬ ‫ادتٗ١ ادتٓٛبٝ١ يألزض ؾٗـٞ‬ ‫حتتٟٛ عً٢ َٓصيني َٓؿضًني‬ ‫ميهٔ االضتؿاد٠ َـٔ َطـاح١‬ ‫املٓـــصيني يضـــاحل ايتٛضـــع يف‬ ‫األبساج ايطهٓٝ١.‬
  • 12.
    ‫ؽشوخ اٌّشبح ؽٛيِٛلغ اٌّششٚع:‬ ‫‪ْ o‬س٣ يف ايضٛز٠ ادتاْبٝ١ زَٛش تـبني يٓـا‬ ‫املٓــاطل ايــيت ٜهجــس ؾٝٗــا َــسٚز املػــا٠‬ ‫اييت بايًٕٛ األمحسد بػهٌ َتٛاصـٌ‬ ‫ٚنجٝـ يف َعظِ أٚقات ايّٝٛ ضـٛاً يف‬ ‫ايٓٗــاز أٚ ايًٝــٌ ٚذيــو ٜسدــع إىل إٔ‬ ‫تًو املٓاطل حتتٟٛ عً٢ َساؾل خدَٝ١‬ ‫َجٌ احملالت ايتذازٜ١ ٚايؿٓادم ٚأٜغاً‬ ‫املٛاصالت ايعاَ١ ٚارتاص١د ٚايسَٛش‬ ‫ايــيت بــايًٕٛ األصــؿس تــبني يٓــا َٓطكــ١‬ ‫حركة املشاة اللثيفة‬ ‫حركة املشاة اخلفيفة‬ ‫حسنـ١ املػــا٠ ارتؿٝؿـ١ ٚايــيت تهــٕٛ يف‬ ‫بعض األحٝإ غب٘ خايٝ١ َٔ املػا٠ أٚ‬ ‫حت٢ ايطـٝازات ٚذيـو بطـبب ٚدـٛد‬ ‫املٓــــاشٍ ايطــــهٓٝ١ ٚخًــــٛ أٟ ْػــــا‬ ‫جتــازٟد ٚضــٝتِ االضــتؿاد٠ َــٔ ذيــو‬ ‫يعٌُ شتازج َٚداخٌ يألبساج ايطهٓٝ١‬ ‫َٔ ذيو.‬
  • 13.
    ‫اٌؼٛػبء ؽٛي اٌّششٚع:‬ ‫ْس٣ يف ايضٛز٠ ادتاْبٝ١ زَٛش تبني‬ ‫‪o‬‬ ‫يٓا املٓاطل اييت تتعسض يًغٛعا٤‬ ‫ضٛاً ناْت ْاجت١ َٔ حسن١‬ ‫املسنبات أٚ ْاجت١ َٔ حسن١‬ ‫املػاٙد ؾايًٕٛ األمحس ٜبني يٓا‬ ‫َٓاطل ذات عٛعا٤ عايٝ١د‬ ‫ٚايًٕٛ األصؿس ٜدي يٓا املٓاطل‬ ‫اييت تهٕٛ ٖاد٥١ ْطبٝاًد ْٚطتؿٝد‬ ‫مناطق ضوضاء عالية‬ ‫َٔ ٖرا ايتخًٌٝ يتٛدٝ٘ املبٓ٢‬ ‫مناطق ضوضاء خفيفة‬ ‫ايطها ٚاإلدازٟ نالً عطب‬ ‫إحتٝاد١ ؾُٔ املعسٚف إٔ ايطهٔ‬ ‫حيتاج إىل اهلدٚ٤د ؾٝتِ إشاح١‬ ‫املبٓ٢ ايطها بكدز اإلَهإ إىل‬ ‫املٓاطل اييت ال تتعسض‬ ‫يًغٛعا٤. أَا بايٓطب١ يًربج‬ ‫اإلدازٟ ؾًٝظ َٔ ايغسٚزٟ إٔ‬ ‫تهٕٛ يف َهإ ٖادئ.‬
  • 14.
    ‫انباب انثاني‬ ‫انذراسة ادلناخية نهمىقع‬ ‫(حركة انشمس - حركة انرياح - أثر انرطىبة - انتهىية)‬
  • 15.
    ‫صبٔ١ً : اٌذساعخإٌّبخ١خ ٌٍّٛلغ:‬ ‫ب‬ ‫1- ؽشوخ اٌشّظ ؽٛي اٌّٛلغ‬ ‫‪ o‬األخر عسن١ ايػُظ ٍٖٛ َػسٚعٓا َِٗ دداً أثٓا‬ ‫ايتضُِٝ ؾٗٓا ؾساغات يف َػسٚعٓا تتطًب إعا٤٠‬ ‫طبٝعٝ١ دٝد٠ أٟ إعا٤٠ ايػُظ ٚتعترب َُٗ١ دداً هلرا‬ ‫ايؿساؽد ٚمبا أْٓا ْكع يف َٓطك١ َٓاخٗا غايباً َا ٜهٕٛ‬ ‫َعتدٍ يف ايضٝـ ٚبازد قًٝالً يف ايػتا٤د ؾُٝهٔ‬ ‫اضتػالٍ أغع١ ايػُظ بػهٌ دٝد يإلعا٤٠ َع األخر‬ ‫عسازتٗا ٚباذتساز٠ ايٓاجت١ َٔ األغخاظ ايًرٜٔ‬ ‫ٜتٛاددٚا داخٌ ٖرا ايؿساؽد ؾال تٛد٘ أغع١ ايػُظ‬ ‫إىل تًو ايؿساغات َباغستاً يهٞ ٜضًٓا عٛ٥ٗا ؾك‬ ‫ٚيٝظ حسازتٗاد ٖٚٓاى ؾساغات يف َػسٚعٓا دٝب‬ ‫محاٜتٗا َٔ أغع١ ايػُظ َٚٔ حسازتٗاد نايطٛبس‬ ‫َازنت ٚاملخاشٕ اييت تتبعٗاد ؾٝؿغٌ ٚقٛعٗا يف‬ ‫َٓاطل ايظٌ أٚ َٓاطل اييت حتتٟٛ عً٢ أغذاز ختؿـ‬ ‫َٔ حساز٠ ايػُظ ٚاإلعا٤٠د تهٕٛ أغع١ ايػُظ‬ ‫حركة الشمس يف فصل الصيف‬ ‫يف ايضٝـ عُٛدٜ١ عً٢ املٛقعد أَا يف ؾضٌ ايػتا٤‬ ‫حركة الشمس يف فصل الشتاء‬ ‫ؾتهٕٛ َا٥ً١ باجتاٙ ادتٓٛب قًٝالً.‬
  • 16.
    ‫2- ؽشوخ اٌش٠بػٚاٌزٙٛ٠خ ٌٍّٛلغ‬ ‫‪ o‬يًسٜــات تــأثري نــبري يف ايتضــُِٝ ٚتــستب ايسٜــات بايتٜٗٛــ١‬ ‫ايطبٝعٝ١ ملبٓ٢ املػسٚعد ٚنُا ْعًِ إٔ ايسٜات يف بًدْا ٖٞ‬ ‫زٜات مشايٝ١ غسقٝ١ آتٝ١ َٔ ايبًدإ ايبازد٠ ؾًريو تهٕٛ‬ ‫ٖرٙ ايسٜات َضخٛب١ بـايربٚد٠ ايـيت جيـب َساعـا٠ ٚعـع‬ ‫املػسٚع بايٓطب١ هلرٙ ايسٜاتد ؾال جيب تٛدٝ٘ ايؿساغـات‬ ‫ايٛظٝؿٝ١ ايس٥ٝطٝ١ يف ْؿظ اجتاٙ ٖرٙ ايسٜات ألْٗـا ضـتٛثس‬ ‫عً٢ ٖرٙ ايؿساغـات ضـًباًد ٚيـتاليف ٖـرٙ املػـهً١ ميهـٔ‬ ‫تٛدٝـــ٘ ايؿساغـــات ايٛظٝؿٝـــ١ ايجاْٜٛـــ١ أٚ ارتدَٝـــ١ َجـــٌ‬ ‫اذتُاَـــات أٚ املطـــابمل أٚ املٓـــاٚز هلـــرٙ ايسٜـــات يتعُـــٌ‬ ‫نخادص ٜعٛم تأثري ٖرٙ ايسٜات ضًباًد أَا بايٓطب١ يًتٜٗٛ١‬ ‫ؾٝتخهِ بٗا َطاح١ ايؿساغات حٍٛ َبٓ٢ املػسٚعد ؾـإذا‬ ‫نإ ايؿساغات ٚاضع١ نإ ايتٜٗٛ١ دٝد٠ يًُبا ؾطـٝتػري‬ ‫اهلــٛا٤ داخــٌ املبٓــ٢ بػــهٌ َطــتُس يــٝالً ْٗــازاًد إَــا إذا‬ ‫ٚدــدت عٛا٥ــل نــبري تعــٛم ٚصــٍٛ اهلــٛا٤ إىل املبٓــ٢‬ ‫ؾطٝضــبح ٖــرا املبٓــ٢ غــري صــخٞ بايٓطــب١ يًــسٚاد ٖــرا‬ ‫سهم يوضح اجتاه الرياح الشمالية الشرقية (سيئة )‬ ‫املػــسٚعد ٚأٜغ ـاً ٜهــٕٛ الزتؿــاع األضــطح عاَــٌ نــبري‬ ‫سهم يوضح إجتاه الريـاح اجلنوبة الغربيـة ( حمببة )‬ ‫إلصتات عاٌَ ايتٜٗٛ١.‬
  • 17.
    ‫3- اٌشؿٛثخ اٌّؾ١ـخثّٛلغ اٌّششٚع‬ ‫‪ o‬ايسطٛب١ ٖٞ ابتالٍ أٚ دؿاف اهلـٛا٤ داخـٌ َبٓـ٢ املػـسٚع ٖٚـٞ تتـأثس بعـد٠ عٛاَـٌد َجـٌ‬ ‫دزد١ حـساز٠ اهلـٛا٤ ارتـازدٞد ٚنُٝـ١ ٖـرا اهلـٛا٤ ايـداخٌ َباغـس٠ إىل املبٓـ٢د باإلعـاؾ١‬ ‫يهُٝ١ ايسطٛب١ ايٓاجت١ عٔ اإلْطإ.‬ ‫بايٓطب١ يضٓعا٤ ٜتُٝص َٓاخٗا بكً١ ايسطٛب١ ؾٝٗا أٚ تهاد تهـٕٛ َعدَٚـ١ ألْٗـا َٓطكـ١ دبًٝـ١‬ ‫‪o‬‬ ‫َستؿع١د ايبخس بعٝد عٓٗاد ٚال ْكٍٛ أْٗا داؾ١ دداً َجٌ ارتسطّٛ دٖٛا داف صخساٟٚ.‬ ‫‪ o‬أَا َٔ ْادٝ١ ٖٝهٌ املبٓ٢ ٚتأثري ايسطٛب١ ٚادتؿاف عًٝ٘د ؾريدع ذيو يًُٛاد املطتخدَ١ يف‬ ‫تػٝٝد ٖرا ٚتؿاعًٗا َع ستٝطٗا ارتازدٞد ٜتِ اختٝاز املٛاد املٓاضب١ يًبٝ٦ـ١ ايـرٟ ٜكـاّ عًٝـ٘‬ ‫املػسٚع.‬
  • 18.
    ‫انباب انثانث‬ ‫األمثهة ادلشاهبة‬ ‫(حتهيم - واجهات - مساقط - مناظري)‬
  • 19.
    ‫1- ِششٚع رخشط(عبِؼخ ؽٍت ) :‬ ‫حتًٌٝ املػسٚع :‬ ‫املػسٚع ٖٛ عباز٠ عٔ َسنص جتازٟ إدازٟ ضها مبطاح١ 0006ّ َهٕٛ‬ ‫َٔ بسدني بسج ضها غكل صػريٙ ٚبسج ادزٟ ٚثالخ ادٚاز يًُسنص‬ ‫ايتذازٟ .‬ ‫املُٝصات :‬ ‫1 - املػسٚع ٜكع عً٢ أزبع غٛازع مما ٜؤدٟ إىل إطالي١ مجًٝ١ إىل‬ ‫ارتازج.‬ ‫2 - عٌُ اتضاٍ َباغس بني ايربج اإلدازٟ ٚاذتٞ احملٝ .‬ ‫3 - عًُٝ١ تٛشٜع احملالت ايتذازٜ١ بطسٜك١ ضًطً١ تطٌٗ عً٢‬ ‫ايصبا٥ٔ ايتخسى يف نٌ احملٌ .‬ ‫4 - عٓاصس االتضاٍ ايس٥ٝطٞ ٚشعٗا َٔ ْاحٝ١ ٚض املػسٚع‬ ‫ٚادتٛاْب.‬ ‫5 - عًُٝ١ ايسب بني نٌ َهْٛات املػسٚع َع بعغٗا ايبعض .‬ ‫ايعٝٛب :‬ ‫1 - عدّ اضتػالٍ ايططح ملٓاطل خظسا٤‬ ‫2 - نإ َٔ املؿرتض عٌُ يف األضطح بعض ايٛظا٥ـ َجٌ ايٓٛادٟ‬ ‫َٚطاح١ يًعب األطؿاٍ‬ ‫3 - عدّ ٚدٛد َطاحات خغسا٤ ستٝط١ باملػسٚع .‬
  • 21.
    ‫صورة توضح الواجهةالرئٌسٌة للمشروع‬ ‫صورة توضح الواجهة الجانبٌة للمشروع‬
  • 22.
    ‫صورة توضح القطاع‪B-B‬‬ ‫صورة توضح القطاع ‪A-A‬‬
  • 23.
    ‫منظور داخلً للبهو‬ ‫فًالمركز التجاري‬
  • 24.
    ‫صورة منظورٌه توضح‬ ‫الكتل فً المبنى‬
  • 25.
    ‫2- ِشوض طٕؼبءاٌزغبسٞ ( اٌّشوض اٌٍ١جٟ) :‬ ‫َٛقع املػسٚع:‬ ‫ٜكع املػسٚع يف َدٜٓ١ صٓعا٤ ٚبايتخدٜد يف ادتص٤‬ ‫ادتٓٛبٞ ايػسبٞ َٓٗا (عً٢ غازع ادتصا٥س).‬ ‫َهْٛات املػسٚع‬ ‫ادتص٤ ايتذازٟ:‬ ‫ٜٚغِ ايدٚز األزعٞ ٚاألٍٚ َٔ املسنص ٖٚٛ‬ ‫عباز٠ عٔ بػبه١ َعدْٝ١ ؾساغٝ١ َع ايصداج.‬ ‫ادتص٤ ايطها:‬ ‫ٜٚتهٕٛ َٔ بسدني نٌ بسج َِٓٗ ٜتهٕٛ َٔ 5‬ ‫أدٚاز (غكل ضهٓٝ١).‬ ‫ادتص٤ اإلدازٟ:‬ ‫ٜٚتهٕٛ َٔ بسج ٚاحد يف ادتٗ١ ايػُايٝ١ َٔ‬ ‫املسنص (َهاتب إدازٜ١).‬ ‫َٛاقـ ايطٝازات :‬ ‫ٚتكع يف ايبدزّٚ.‬ ‫صورة منظوريه للمركز التجاري اإلداري السكني‬
  • 26.
    ‫املُٝصات:‬ ‫• ٚقٛع املسنص عً٢ غٛازع ز٥ٝطٝ١ ٚحطاض١ يف َدٜٓ١ صٓعا٤ (غازع ادتصا٥س – ٚغازع ايطتني).‬ ‫• ضٗٛي١ ايٛصٍٛ إىل املسنص.‬ ‫• ضٗٛي١ ايٛصٍٛ إىل املٓطك١ ايتذازٜ١ يف ايدٚز األزعٞ مبا ال ٜتعازض َع َدخٌ ايطهٔ أٚ َدخٌ املهاتب.‬ ‫• ايٛصٍٛ َٔ ٚإىل َٛاقـ ايطٝازات يف ايبدزّٚ دٕٚ تعازض َع َطازات اذتسن١ ارتاص١ باملػا٠.‬ ‫ايعٝٛب:‬ ‫• خيدّ املػسٚع ؾ٦١ َعٝٓ١ َٔ‬ ‫اجملتُع.‬ ‫• ععـ َداخٌ املػسٚع.‬ ‫• َٛاقـ ايطٝازات قًًٝ١ بايٓطب١‬ ‫ذتذِ املبٓ٢.‬ ‫• عدّ ٚدٛد َٓاطل خغسا٤ حٍٛ‬ ‫املبٓ٢ .‬ ‫صورة منظوريه للمركز التجاري اإلداري السكني‬
  • 27.
    ‫هسقظ الذور األرضًللقسن التجاري‬
  • 28.
    ‫هسقظ الذور األولللقسن التجاري‬
  • 29.
  • 30.
    ‫هسقظ لألدوار الوتكررةللقسن اإلداري‬
  • 31.
    ‫3- ِششٚع ِمذَػّٓ ِبدح اٌزظّ١ُ اٌّؼّبسٞ :‬ ‫• ٖرا املػسٚع عباز٠ عٔ بسج ضها جتازٟ إدازٟ‬ ‫بايسغِ َٔ صػس حذُ٘ إىل إٔ َٔ صُُ٘ حاٍٚ‬ ‫إٔ جيُع ٖرٙ ايعٓاصس بػهٌ َدزٚع َٔ‬ ‫ايٓاحٝ١ ايٛظٝؿٝ١.‬ ‫املُٝصات :‬ ‫• ٚعع َدخٌ ايطٝازات يف ايػازع ايؿسعٞ‬ ‫ععٝـ اذتسن١ يٝطاعد دخٍٛ ٚخسٚج ايطٝازات.‬ ‫• زب اذتسن١ ايسأضٝ١ َٔ ايبدزّٚ إىل األدٚاز‬ ‫املتهسز٠ بػهٌ دٝد.‬ ‫• اذتسن١ داخٌ املسنص ضًٗ١ ٚٚاعخ١.‬ ‫• زب ايػكل ايطهٓٝ١ ٚاإلدازٜ١ باملسنص ايتذازٟ.‬ ‫ايعٝٛب :‬ ‫• عٌُ نطسات داخٌ املعازض عًُت عً٢ تغٝٝع‬ ‫ايؿساغات.‬ ‫• ٚدٛد ممسات عٝك١ يف بعض األَانٔ.‬ ‫هسقظ للذور األرضً التجاري‬
  • 32.
    ‫املُٝصات:‬ ‫• أعط٢ يهٌ نتً١ ثالخ ٚادٗات مما ٜطاعد عً٢‬ ‫اإلعا٤٠ ادتٝد٠ ٚايتٜٗٛ١.‬ ‫• زب ايطالمل بارتازج يًُطاعد٠ عً٢ اإلعا٤٠.‬ ‫• تٛشٜع املضاعد يف اإلطساف ٚعددٖا نايف يًػكل‬ ‫ايطهٓٝ١‬ ‫• َٛعع املٓٛز ٜعترب دٝد ذتد َا.‬ ‫• َطاح١ ايبٗٛ نبري٠ تطاعد يف دخٍٛ اإلعا٤٠‬ ‫ٚأٜغا‬ ‫يٓكٌ ٚتستٝب األثاخ .‬ ‫• َسْٚ١ ايتضُِٝ عٝح ٜطتطٝع اضتخداّ ايػك١‬ ‫ضهٓٝ١ أٚ إدازٜ١ أٚ عٝاد٠ طبٝ١‬ ‫ايعٝٛب:‬ ‫• عٝٛب يف ايتضُِٝ باضتخداَ٘ ايتُاثٌ ايتاّ.‬ ‫• عدّ اضتخداّ أٟ أغهاٍ ٖٓدضٝ١ غري املسبع.‬ ‫هسقظ لألدوار الوتكررة‬ ‫السكنٍت واإلدارٌت‬
  • 33.
    ‫املُٝصات :‬ ‫• عٌُ تدزدات َٔ األضؿٌ إىل األعً٢ يف ايٛادٗات‬ ‫ايصدادٝ١ ٚ املضُت١ .‬ ‫• عٌُ ؾتخات نبريٙ يًدٚز األٍٚ ايتذازٟ .‬ ‫• املدخٌ ٚاعح ٚ نبري إىل حدا َا .‬ ‫• تطعِٝ ايٛادٗات بعٓضس َٔ ايطابع املعُازٟ‬ ‫يضٓعا٤ .‬ ‫ايعٝٛب :‬ ‫• عدّ ٚدٛد ٚحدٙ َعُازٜ٘ ٚأٜغا زمت يًٛادٗ١ .‬ ‫• ؾتخات ضٝ٦١ يًدٚز ايجاْٞ ايتذازٟ . ال ٜدٍ عً٢ أْ٘‬ ‫َسنص جتازٟ‬ ‫• عدّ اضتخداّ ايعٓضس األؾكٞ .‬ ‫• حيبر إٔ ٜهطس ًٌَ األزنإ بصٚاٜا دا٥سٜ١ (نسؾات) .‬ ‫• خ ايطُا٤ دا٤ مبطتٛ٣ ٚاحد ممٌ .‬ ‫واجهت للوبنى السكنً التجاري اإلداري‬
  • 34.
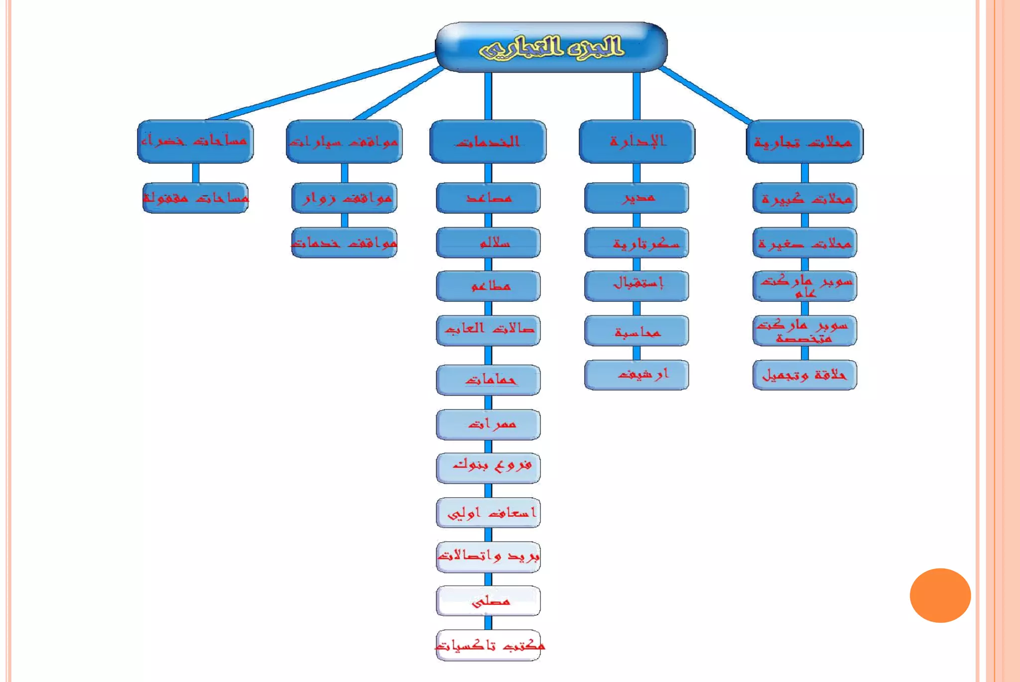
    ‫انباب : انرابع‬ ‫(ادلكىنات- انعناصر - انعالقات انىظيفية)‬
  • 40.
    ‫ستالت بٝع األغرٜ١:‬ ‫• ستالت بٝع األيبإ.‬ ‫• ستالت ايعطاز٠ ٚايتُٜٛٔ ايػرا٥ٞ.‬ ‫•ستالت ايطذاد ٚاملؿسٚغات :‬ ‫• أَانٔ َؿتٛح١ يبٝع ارتغسٚات ٚايؿٛان٘.‬ ‫ستالت بٝع املؿازش .‬ ‫ستالت ايكطاع ارتاظ :‬ ‫ستالت بٝع ايطذاد .‬ ‫•ستالت األقُػ١ :‬ ‫أقُػ١ َتٓٛع١ .‬ ‫•ستالت األدٗص٠ ايدقٝك١ :‬ ‫أقُػ١ ايطتا٥س .‬ ‫ستالت بٝع األدٗص٠ ايطبٝ١.‬ ‫أقُػ١ ايعسا٥ظ .‬ ‫ستالت بٝع ايهاَريات ٚأدٚات ايتضٜٛس .‬ ‫أقُػ١ زدايٝ١.‬ ‫ستالت بٝع ايطاعات.‬ ‫•ستالت األحرٜ١ ٚادتًٛد:‬ ‫أحرٜ١ ْطا٥ٝ١ ٚحكا٥ب .‬ ‫• ستالت اجملٖٛسات ٚايؿغ١:‬ ‫أحرٜ١ زدايٝ١ ٚأحصَ١ .‬ ‫ستالت بٝع ايرٖب ارتازدٞ.‬ ‫أحرٜ١ أطؿاٍ .‬ ‫ستالت بٝع اذتًٞ ٚايؿغ١.‬ ‫حكا٥ب َدزضٝ١ ٚحكا٥ب ضؿس‬ ‫•ستالت خدَٝ١ ٚحسؾٝ١:‬ ‫• ستالت ايكسطاضٝ١:‬ ‫قسطاضٝ٘ َتٓٛع١.‬ ‫ستالت خٝاط١ ٚتطسٜص.‬ ‫َطتًصَات طباع١ ٚطابعات.‬ ‫حالق١ ٚجتٌُٝ.‬ ‫َعدات َٚطتًصَات ٖٓدضٝ١.‬ ‫إصالت أحرٜ١.‬ ‫َهتبات.‬ ‫ستالت دسا٥د ٚزتالت.‬
  • 41.
    ‫دساعخ اٌؼاللبد اٌٛظ١ف١خ‬ ‫ِخـؾ رٛص٠ؼٟ ٌؼٕبطش اٌّششٚع اٌشئ١غ١خ :‬ ‫مذخل المشروع‬ ‫الشقق السكنية‬ ‫الونطقت الخضراء‬ ‫المكاتب اإلدارية‬ ‫موقف السيارات‬
  • 42.
    ‫ِخـؾ رٛص٠ؼٟ ٌؼٕبطشاٌّشوض اٌزغبسٞ:‬ ‫مددن ددمي‬ ‫محالت تجارًة‬ ‫ساللم‬ ‫مطبخ‬ ‫ومصاعد‬ ‫ؾرع‬ ‫سٌوما‬ ‫حمامات‬ ‫البوك‬ ‫مطع ــم‬ ‫ملـتب‬ ‫امامن جلوس‬ ‫امن‬ ‫اتصالت‬ ‫بهو توزًع‬ ‫محالت تجارًة‬ ‫مقهى‬ ‫المددن الرئٌسي‬
  • 43.
    ‫محالت‬ ‫اٌؼاللبد اٌٛظ١ف١خ ٌؼٕبطش اٌّشوض اٌزغبسٞ:‬ ‫متوسطة‬ ‫محالت‬ ‫محالت‬ ‫مبٌرة‬ ‫صؼٌرة‬ ‫ممرات‬ ‫ػاللخ لٛ٠خ‬ ‫ػاللخ ِزٛعـخ‬ ‫بهو تؿرًغ + امامن‬ ‫ػاللخ ػؼ١فخ‬ ‫مقهى‬ ‫مطعم‬ ‫جلوس‬ ‫صالة‬ ‫ؾرع بوك +‬ ‫سٌوما‬ ‫اتصالت‬ ‫بهو‬ ‫رمن لعب‬ ‫مددن‬ ‫بهو‬ ‫اطؿال‬ ‫امن‬ ‫مددن‬ ‫إدارة‬ ‫مددن‬ ‫رئٌسي‬ ‫ثاهوي‬
  • 44.
    ‫اٌؼاللبد اٌٛظ١ف١خ ٌٍٛؽذحاٌغىٕ١خ:‬ ‫صالة‬ ‫الطعام‬ ‫الملـتب‬ ‫المطبخ‬ ‫ػرؾة المعٌشة‬ ‫ػاللخ لٛ٠خ‬ ‫ػاللخ ِزٛعـخ‬ ‫ػاللخ ػؼ١فخ‬ ‫المجلس‬ ‫ػرؾة‬ ‫الحمامات‬ ‫الووم‬ ‫المددن‬ ‫93‬
  • 45.
    ‫دساعخ اٌّغبؽبد ٌٍّششٚع:‬ ‫عذاٚي ؽغبة اٌّغبؽبد ٌٍغضء اٌغىٕٟ‬ ‫1- ٔظبَ األعٕؾخ‬ ‫المساحة اإلجمالٌة‬ ‫عدد الفراغات‬ ‫المساحة للفرد المستخدم‬ ‫نوع الفراغ‬ ‫51م2‬ ‫1‬ ‫51م2‬ ‫غرفة نوم‬ ‫8 م2‬ ‫1‬ ‫8 م2‬ ‫صالة جلوس‬ ‫5 م2‬ ‫1‬ ‫5 م2‬ ‫حمام‬ ‫6 م2‬ ‫1‬ ‫6 م2‬ ‫ركن تحضير طعام‬ ‫* ِغبؽخ اٌغٕبػ اٌٛاؽذ = 43 َ2.‬ ‫خذِبد ِّٚبشٟ 04 % = 6.31َ2.‬ ‫ِغبؽبد خؼشاء 03 % = 01 َ2.‬ ‫اإلعّبٌــــــــــــــــــــــــٟ = 6.75 َ2.‬
  • 46.
    ‫2- ٔظبَ شمكغشفز١ٓ‬ ‫المساحة للفرد‬ ‫المساحة اإلجمالٌة‬ ‫عدد الفراغات‬ ‫نوع الفراغ‬ ‫المستخدم‬ ‫23م2‬ ‫2‬ ‫61م2‬ ‫غرف نوم‬ ‫51 م2‬ ‫1‬ ‫51 م2‬ ‫صالة جلوس‬ ‫01 م2‬ ‫2‬ ‫5 م2‬ ‫حمام‬ ‫21 م2‬ ‫1‬ ‫21 م2‬ ‫مطبخ‬ ‫8 م2‬ ‫1‬ ‫8 م2‬ ‫غرفة طعام‬ ‫4 م2‬ ‫1‬ ‫4 م2‬ ‫مخزن‬ ‫•ِغبؽخ اٌشمخ ٔظبَ غشفز١ٓ = 18 َ2.‬ ‫خذِبد ِّٚبشٟ 04 % = 4.23 َ2.‬ ‫ِغبؽبد خؼشاء 03 % = 3.42 َ2.‬ ‫اإلعّبٌـــــــــــــــــــــــٟ = 7.731 َ2.‬
  • 47.
    ‫3- ٔظبَ شمكصالس غشف‬ ‫المساحة اإلجمالية‬ ‫عذد الفراغات‬ ‫المساحة للفرد المستخذم‬ ‫نوع الفراغ‬ ‫84 م2‬ ‫3‬ ‫61م2‬ ‫غرف نىم‬ ‫51 م2‬ ‫1‬ ‫51 م2‬ ‫صالت جلىس‬ ‫01 م2‬ ‫2‬ ‫5 م2‬ ‫حوام‬ ‫21 م2‬ ‫1‬ ‫21 م2‬ ‫هطبخ‬ ‫8 م2‬ ‫1‬ ‫8 م2‬ ‫غرفت طعام‬ ‫4 م2‬ ‫1‬ ‫4 م2‬ ‫هخزى‬ ‫* ِغبؽخ اٌشمخ ٔظبَ صالس غشف = 79 َ2.‬ ‫خذِبد ِّٚبشٟ 04 % = 8.83 َ2.‬ ‫ِغبؽبد خؼشاء 03 % = 92 َ2.‬ ‫اإلعّبٌــــــــــــــــــٟ = 8.461 َ2.‬
  • 48.
    ‫4- ٔظبَ شمكأسثغ غشف‬ ‫المساحة للفرد‬ ‫المساحة اإلجمالية‬ ‫عذد الفراغات‬ ‫نوع الفراغ‬ ‫المستخذم‬ ‫46 م2‬ ‫4‬ ‫61م2‬ ‫غرف نىم‬ ‫51 م2‬ ‫1‬ ‫51 م2‬ ‫صالت جلىس‬ ‫01 م2‬ ‫2‬ ‫5 م2‬ ‫حوام‬ ‫21 م2‬ ‫1‬ ‫21 م2‬ ‫هطبخ‬ ‫8 م2‬ ‫1‬ ‫8 م2‬ ‫غرفت طعام‬ ‫4 م2‬ ‫1‬ ‫4 م2‬ ‫هخزى‬ ‫* ِغبؽخ اٌشمخ ٔظبَ أسثغ غشف = 311 َ2.‬ ‫خذِبد ِّٚبشٟ 04 % = 2.54 َ2.‬ ‫ِغبؽبد خؼشاء 03 % = 9.33 َ2.‬ ‫اإلعّبٌـــــــــــــــــــــــــــٟ = 291 َ2.‬
  • 49.
    ‫رؾٍ١ً أعضاء اٌّشوضاٌزغبسٞ:‬ ‫1- اٌّؾالد اٌزغبسٞ:‬ ‫ٚ٠فؼً أْ رشغً اٌّغزٛ٠بد اٌغفٍ١خ ِٓ اٌّجٕٝ ٚ٠زشاٚػ ِغبؽخ وً ِؾً ِٓ "42-05" َ2.‬ ‫ٚأُ٘ اٌفشاغبد اٌزٟ ٠غت ٚعٛد٘ب فٟ اٌّؾالد اٌزغبس٠خ ٟ٘:‬ ‫أ- ِىبْ اٌج١غ: ٚ٘ٛ اٌّىبْ اٌزٟ رؼشع ف١ٗ اٌجؼبئغ ٚ٠شربدٖ اٌّزغٛلْٛ ٚ٠ؼزجش اٌغضء األعبعٟ ِٓ اٌغٛق ٚف١ٗ‬ ‫رٛعذ ألغبَ اٌؼشع ٚثؼغ اٌضالعبد اٌظغ١شح ثبإلػبفخ إٌٝ ٚعٛد ِغزٛدػبد طغ١شح رغزٛػت االعزٙالن اٌ١ِٟٛ.‬ ‫ٚفٟ ثؼغ اٌّؾالد اٌىض١شح ِٓ اٌؼشٚسٞ عذً أْ ٠ىٛ اٌّغزٛدع اٌىج١ش ٘ٛ ٔفغٗ ِؾً اٌؼشع ٌٚىٓ ثشىً‬ ‫ا‬ ‫ِٛعغ ، أِب ثبٌٕغجخ ٌّىبْ اٌزؼبًِ فئٔٗ لذ ٠ىْٛ ِغمٛف عضئ١ً إٚ وٍ١ً ٚ٠فؼً أْ ٠ىْٛ ِغمٛف وٍ١ً ٚرٌه‬ ‫ب‬ ‫ب‬ ‫ب‬ ‫ٌؾّب٠خ اٌجؼبئغ ِٓ اٌزٍف.‬ ‫ة- اٌّغزٛدػبد: ٌٚٙب أٔٛاع ػذح فٟ اٌّشاوض اٌزغبس٠خ فّٕٙب ِب ٠ىْٛ ِشوضٞ أٞ أٔٙب ِخبصْ ػبِخ ٌىً اٌغٛق‬ ‫ٌٚفزشاد صِٕ١خ ؿٛ٠ٍخ أٚ ٌىً ِغزٛدع خبص ثٗ ٌؾفظ وّ١خ اٌجؼبئغ ٌفزشح لظ١شح لذ رىْٛ صالعبد أٚ ِغبؽبد‬ ‫رخض٠ٓ أٚ ِغزٛدػبد ٚرزشاٚػ ِغبؽخ اٌّغزٛدػبد اٌٍّؾمخ ثّىبْ اٌج١غ ؽٛاٌٟ سثغ ِغبؽخ اٌج١غ ٚلذ رشزًّ أٚ‬ ‫رىْٛ ِغبٚ٠خ ٌٙب.‬
  • 50.
    ‫2- ِٛالف اٌغ١بساد:‬ ‫أ-ٟٚ٘ راد ػاللخ ِجبششح ثبٌّغزٛدػبد (04 َ2) ٚلذ رىْٛ ٌٙب ػاللخ ثّىبْ اٌج١غ ٚرٌه إرا وبْ اٌّغزٛدع ِشرجؾ ثّىبْ اٌج١غ ٚلذ ال‬ ‫رىْٛ ٌٙب ػاللخ ثّىبْ اٌج١غ إرا وبٔذ اٌّغزٛدػبد ِفظٌٛخ ػٓ أِبوٓ اٌج١غ.‬ ‫ة- ِٛالف ع١بساد اٌضثبئٓ ٟٚ٘ راد ػاللخ ِجبششح ثّىبْ اٌج١غ ٚرىْٛ ِغبؽزٗ ِٓ (8-52َ2). ِغ األخز فٟ االػزجبس ػٍٝ رٛف١ش ا٢رٟ:‬ ‫*ؽّبَ ػبَ (2-4َ2).‬ ‫* ِخضْ ٌّؼذاد اٌزٕظ١ف (8-21َ2)‬ ‫* غشفخ ؽبسط (21-41َ2)‬ ‫3- ِـؼُ ع١بؽٟ:‬ ‫ٚ٠زىْٛ ِٓ :‬ ‫(001-021) شخض فٟ آْ ٚاؽذ‬ ‫أ- طبٌخ ؿؼبَ‬ ‫(03-63َ2)‬ ‫ة- اٌّـجخ‬ ‫(81-42َ2)‬ ‫ط- ِخضْ عبف‬ ‫(81-42َ2)‬ ‫د- ِخضْ ثبسد‬ ‫(21-61َ2)‬ ‫٘ـ- ؽّبَ سعبٌٟ ٌٍؼبٍِ١ٓ‬ ‫ٚ- إداسح اٌّـؼُ.. ٚرشًّ ػٍٝ ا٢رٟ:‬ ‫(81-02َ2)‬ ‫1- غشفخ اٌّذ٠ش ٚاٌغىشربس٠خ‬ ‫(21-41َ2)‬ ‫2- غشفخ اٌّؾبعت‬ ‫(01-21َ2)‬ ‫3- غشفخ اٌششف ػٍٝ طبٌخ اٌّـؼُ ٚاٌؼبٍِ١ٓ ف١ٙب‬ ‫(41-31َ2)‬ ‫4- ِخضْ ٌّؼذاد طبٌخ اٌـؼبَ ِٓ اٌضعبع١بد ٚاٌّال٠بد‬
  • 51.
    ‫4- اٌفؼبءاد اٌىٍ١خاٌخذِ١خ:‬ ‫(04-06َ2).‬ ‫أ- غشفخ ِىبئٓ اٌزى١١ف‬ ‫(02-42َ2).‬ ‫ة- غشفخ اٌٌّٛذاد اٌىٙشثبئ١خ‬ ‫( 42-03َ ).‬ ‫ط- ِغبؽبد خبطخ ٌخضأبد اٌّ١بٖ اٌظبفٟ ِغ اٌّؼخبد اٌزبثؼخ ٌٙب‬ ‫د- ٍِغأ ٌٍّغزخذِ١ٓ أصٕبء ؽبالد اٌـٛاسا ½ َ2 ٌىً شخض فٟ اٌجٕب٠خ.‬ ‫٘ـ- اٌـبثك اٌخذِٟ ٚ٠غزخذَ ٚ٠ظُّ ٌزؾٛ٠ً أٔبث١ت ِغبسٞ اٌّبء اٌظبفٟ ٚاٌزشغ١ً إٌبصي ٚاٌظبػذ ِٓ اٌّىبرت‬ ‫ٚاٌٛظبئف األخشٜ فٟ أٔفبق خبطخ ثزٌه ٚ٠ّىٓ االعزغٕبء ػٓ ٘زا اٌـبثك إرا رُ رؾٛ٠ً رٍه األٔبث١ت ػّٓ وً‬ ‫ؿبثك ٚفٟ اٌغمف اٌزبثغ ٌٗ ٚرغـ١زٙب ثغمف وبرة.‬
  • 52.
    ‫عذٚي ؽغبة ِغبؽبداٌغضء اٌزغبسٞ‬
  • 53.
    ‫عذٚي ؽغبة ِغبؽبداٌغضء اٌزغبسٞ‬
  • 54.
    ‫عذٚي ؽغبة ِغبؽبداٌغضء اإلداسٞ‬
  • 55.
    ‫انباب : اخلامس‬ ‫(ادلعايريانتصميمية وانتخطيطية)‬
  • 56.
    ‫أٚ ً: اٌّؼب٠١شاٌزخـ١ـ١خ ٚاٌزظّ١ّ١خ ٌٍّشاوض اٌزغبس٠خ‬ ‫ال‬ ‫اٌّؼٍِٛبد األٌٚ١خ ٌزخـ١ؾ اٌّشاوض اٌزغبس٠خ:‬ ‫1- رٛع١ٗ اٌّذخً ثؾ١ش ٠ؾمك عٌٙٛخ اٌؾشوخ ٚاٌٛطٛي ٚاال٘زذاء اٌغش٠غ .‬ ‫2- رؾذ٠ذ ِغبؽخ إٌّـمخ اٌزغبس٠خ ٚؽذٚد٘ب ػٓ ؿش٠ك رؾٍ١ً األٚػبع اٌشإ٘خ اٌزٟ ِٓ اٌّّىٓ ؽذٚصٙب ٌؼذد ٚوضبفخ‬ ‫اٌغىبْ ثبإلػبفخ إٌٝ خظبئظُٙ ٚؽبعبرُٙ االلزظبد٠خ ٚوزٌه دساعخ اٌـشق ٚٚعبئً إٌمً اٌّٛطٍخ إٌ١ٙب ِٚغبفخ‬ ‫ٚؽذح االٔزمبي.‬ ‫3- اٌمٛح اٌششائ١خ:‬ ‫إْ ِؼشفخ اٌمٛح اٌششائ١خ ػٕذ اٌغىبْ ِّٙخ عذً . إر أْ اٌمٜٛ اٌششائ١خ ٕ٘ب رزؼٍك ثذخً األفشاد ؽ١ش أْ اإلٔفبق ٌٗ‬ ‫ا‬ ‫ػاللخ ؿشد٠خ ثذخً اٌفشد. إر أْ ثّؼشفخ اٌمٛح اٌششائ١خ ٌٍّٕـمخ اٌّـٍٛثخ رخـ١ؾ ِشوض٘ب ُِٙ اٌزؼشف ػٍٝ ِذٜ ؽبعخ‬ ‫إٌّـمخ إٌٝ اٌّشوض اٌزغبسٞ ٚٔٛػٗ.‬ ‫4- إٌّبفغخ اٌزغبس٠خ:‬ ‫إْ إٌّبفغخ اٌزغبس٠خ رٍؼت دٚسً فٟ عزة اٌؼّالء ِٓ ِٕـمخ إٌٝ أخشٜ ٚثبٌزبٌٟ رؤصش ػٍٝ ؽغُ ِٚغبؽخ اٌّشوض‬ ‫ا‬ ‫اٌزغبسٞ ؽ١ش ػذد اٌزٞ ٠شدْٚ إٌٝ اٌّشوض ٠ٍؼت دٚسً فٟ رؾذ٠ذ أّ٘١زٗ.‬ ‫ا‬ ‫إْ اٌّؼٍِٛبد اٌزٟ روشد وٍٙب رؤدٞ إٌٝ ِؼشفخ اٌؾغُ اٌزمش٠جٟ ٌم١ّخ اٌّج١ؼبد ٚثبٌزبٌٟ ٠غزفبد ِٕٙب فٟ رؾذ٠ذ ٚرٛص٠غ‬ ‫اٌّغبؽبد اٌالصِخ ٌزخـ١ؾ ٚرظّ١ُ اٌّشوض اٌزغبسٞ.‬
  • 57.
    ‫ا- ٔمبؽ الثذ ِشاػبرٙب ػٕذ ػًّ اٌّشاوض اٌزغبس٠خ‬ ‫1- اٌّٛلغ:‬ ‫رمغ فٟ ِشوض األػّبي فٟ ِىبْ اٌزغّؼبد اٌغىبٔ١خ، أِبوٓ لش٠جخ ِٓ اٌّؾـبد ٚاٌزمبؿؼبد ٚٚعبئً إٌمً ٚفٟ أؿشاف اٌّذْ.‬ ‫2- ِٛالف اٌغ١بساد:‬ ‫٘زٖ األ٠بَ ٠زغٛق إٌبط ثغ١بسارُٙ ٚفٟ اٌٛال٠بد اٌّزؾذح ِىبْ ٌىً "0003 إٌٝ 0004" شخض أٚ ٔغجخ ِٓ اٌّغبؽبد اٌضعبع١خ‬ ‫فٟ اٌٛاعٙخ رجؼً إٌٝ أِبوٓ ٚلٛف اٌغ١بساد رغبٚٞ 1/5.2 ٚرٌه ػٕذِب رٕظُ أِىٕخ لٍ١ٍخ أٚ أِىٕخ ع١بساد ِغٍمخ أٚ وشاط فٟ‬ ‫ب‬ ‫األػٍٝ ... إٌخ.‬ ‫ثبٌٕغجخ ٌٍ١ّٓ :- اٌّزبعش فٟ اٌؼٛاؽٟ : "5" أِبوٓ ٌىً 001َ2 ِٓ إعّبٌٟ ِغبؽخ اٌّجٕٝ.‬ ‫اٌّزبعش خبسط اٌّذ٠ٕخ : "5.8 ِىبْ ٌىً 001 َ2 ِٓ إعّبٌٟ ِغبؽخ اٌّجٕٝ.‬ ‫ِزبعش إٌّـمخ اٌّشوض٠خ : "57.5" ِىبْ ٌىً 001َ2 ِٓ إعّبٌٟ ِغبؽخ اٌّجٕٝ.‬ ‫3- ؽشوخ اٌّشبح ٚاٌّٛاطالد:‬ ‫أ- ٠غت أْ رفظً ؽشوخ اٌّشبح ػٓ ؽشوخ اٌؼشثبد ٚاٌجؼبئغ.‬ ‫ة- إؽذاس ؿشق ِشبح لظ١شح ِؾّ١خ ِٓ اٌشّظ ٚاٌّـش ث١ٓ ِٛلف اٌغ١بساد ٚاٌّزغش.‬ ‫ط- سثؾ ِٛالف اٌجبطبد أٚ اٌغىه اٌؾذ٠ذ٠خ أٚ اٌّزش ثأسطفخ أٚ ِذاخً ٌٍّشوض.‬
  • 58.
    ‫ة- ٔمبؽ الثذ ِشاػبرٙب ػٕذ ػًّ اٌّشاوض اٌزغبس٠خ:‬ ‫3- ؽشوخ اٌّشبح ٚاٌّٛاطالد:‬ ‫أ- ٠غت أْ رفظً ؽشوخ اٌّشبح ػٓ ؽشوخ اٌؼشثبد ٚاٌجؼبئغ.‬ ‫ة- إؽذاس ؿشق ِشبح لظ١شح ِؾّ١خ ِٓ اٌشّظ ٚاٌّـش ث١ٓ ِٛلف اٌغ١بساد ٚاٌّزغش.‬ ‫ط- سثؾ ِٛالف اٌجبطبد أٚ اٌغىه اٌؾذ٠ذ٠خ أٚ اٌّزش ثأسطفخ أٚ ِذاخً ٌٍّشوض.‬ ‫4- اٌّذاخً اٌشئ١غ١خ:‬ ‫٠غت رٛع١ٙٙب ثّب ٠ؾمك عٌٙٛخ اٌؾشوخ ٚاٌٛطٛي ٚاأل٘زذاء اٌغش٠غ ٚثّب ٠زظً ثّشاوض اٌؾشوخ ا٢ٌ١خ اٌخبطخ ٚاٌؼبِخ ِٓ ٚاٌّشبح ِٓ عٙخ‬ ‫أخشٜ.‬ ‫5- اٌّغبؽبد اٌخؼشاء:‬ ‫٠غت ِشاػبح رٛفش ِغبؽبد خؼشاء وبف١خ ٌخذِبد أٚ ٌخذِخ اٌّشوض ثشىً خبص ٚاٌّغزّغ ثشىً ػبَ.‬ ‫6- اٌزٛع١ٗ:‬ ‫٠غت ِشاػبح اٌزٛع١ٗ اٌظؾ١ؼ ٚاٌزٞ ع١غبػذ فٟ اٌزؾىُ فٟ ػٍّ١خ ػضي اٌؼٛػبء ٚفٟ ػٍّ١خ إخّبد اٌؾشائك ٚرغٕجٙب ثغشػخ رفٛق‬ ‫عشػخ أزشبس٘ب ٕٚ٘ب ٠غت إثؼبد اٌّجٕٝ ثّغبفخ 51َ ػٓ األشغبس اٌىج١شح.‬
  • 59.
    ‫ط- ٔمبؽ ِجذئ١خفٟ رظّ١ُ اٌّشاوض اٌزغبس٠خ‬ ‫1- ؿبٌّب أْ لغُ اٌضثبئٓ ٠زغٛلْٛ ثغ١بسارُٙ اٌخبطخ فئْ رخظ١ض ِٛلف ٚاؽذ ٌىً (003-004) شخض ِغ اؽزّبي صالس ِشاد ٠ِٛ١ً.‬ ‫ب‬ ‫2- إْ ٔغجخ ِغبؽخ اٌغٛق إٌٝ ِغبؽخ ِٛلف اٌغ١بساد ِزؼٍمخ ثبٌّٛلغ اٌّؾذد اٌّغبؽخ ٚ٠ّىٓ رظّ١ُ اٌىشاعبد ثؼذح ؿٛاثك.‬ ‫3- رؾزٛٞ اٌّخبصْ اٌىج١شح ػٍٝ غشف اعزؼالِبد - ِـبػُ- ِمبٟ٘- ِظشف- ثٕه- ثش٠ذ- ِىبرت عفش- ع١ّٕب .... إٌخ.‬ ‫4- اٌّؾالد اٌزغبس٠خ اٌظغ١شح رغّغ ػبدح ؽٛي ِشوض ِؼ١ٓ.‬ ‫5- ِٕبؿك اٌج١غ ٠غت أْ رىْٛ فٛق ثؼؼٙب ِٚذخٍٙب ألشة ِب ٠ّىٓ ِٕٙب.‬ ‫6- اٌذٚس األسػٟ أفؼً ِٓ اٌـٛاثك اٌؼٍٛ٠خ ٌٍّج١ؼبد ٚغشف اٌزخض٠ٓ ؽزٝ رىْٛ ثبٌمشة ِٓ اٌشبسع.‬ ‫7- اسرفبع اٌّخبصْ فٟ اٌـبثك األسػٟ (4 - 5) َ ٚفٟ اٌـٛاثك اٌؼٍ١ب (7.3-4)َ أِب األػٍٝ (3-4) َ.‬ ‫8- اٌؾغشاد اٌظغ١شح ٔبدسً ِب رىْٛ ػشٚس٠خ.‬ ‫ا‬ ‫9- إٌٛافز فٛق ِغزٜٛ ػبٌٟ فٛق اٌشفٛف.‬ ‫01- ػذد ٚارغبع اٌغالٌُ ثٛاعـخ إٌظبَ اٌزٞ ٠ٍّٟ ٚثؼغ األٔظّخ األٚسٚث١خ رؾذد 33% ِٓ ِغبؽخ األسع ٠ّىٓ أْ ٠غزؼًّ ٌّخبصْ‬ ‫ٚؿبٚالد اٌج١غ.‬
  • 60.
    ‫(د)إٌمبؽ األعبع١خ اٌزٟ٠غت ِشاػبرٙب فٟ رظّ١ُ اٌّشاوض اٌزغبس٠خ:‬ ‫1- أْ ٠ىْٛ اٌّٛلغ ِٕبعت ٌٍّٕـمخ اٌغىٕ١خ ٚوزٌه ٌٛعبئؾ إٌمً اٌؼبَ وّب ٠الؽظ اٌّشٚٔخ.‬ ‫2- ال ثذ ِٓ فظً ؽشوخ اٌّشبح ػٓ ؽشوخ اٌغ١بساد.‬ ‫3- اٌؾشوخ أِبَ اٌّؾالد ٌٍّشبح فمؾ ِغ ػًّ اٌّظالد إٌّبعجخ.‬ ‫4- ٠غزؾغٓ أْ ٠ٛػغ اٌّشوض اٌزغبسٞ ِغ اٌخذِبد األخشٜ اٌزشف١ٙ١خ فٟ ِىبْ ٚاؽذ.‬ ‫5- ٠ذاس اٌّشوض ِٓ لجً اٌؾىِٛخ ٚاٌزؼبْٚ ِغ اٌّالن ٚاٌزغبس.‬ ‫6- ٠غت إثؼبد اٌّشوض ػٓ اٌـش٠ك اٌؼبَ ؽزٝ رزٛفش ٌٗ األِٓ.‬ ‫7- ٠غت أْ ٠ىْٛ اٌـشاص اٌّؼّبسٞ ٚاؽذ. ٚرٌه ثأخز ؿبثغ إٌّـمخ اٌّٛعٛد ثٙب اٌّششٚع ٚاالٌزضاَ ػٕذ ثٕبء ٘زا‬ ‫اٌّششٚع ثـبثغ ٘زٖ إٌّـمخ.‬
  • 61.
    ‫٘ـ - اٌّؼب٠١شاٌزظّ١ّ١خ ٌٍغضء اٌزغبسٞ‬ ‫ٕ٘بن ػذح أِٛس ٠غت ِشاػبرٙب ػٕذ رظّ١ُ اٌّشاوض اٌزغبس٠خ:‬ ‫1- اٌزشو١ض ػٍٝ ٚػغ اٌخذِبد ٚاألٔشـخ اٌؼبِخ ثؾ١ش رىْٛ ٚاػؾخ ٚفٟ ِزٕبٚي اٌغّ١غ.‬ ‫2- ٠غت رظٕ١ف اٌّؾالد اٌزغبس٠خ اٌّزمبسثخ فٟ اٌؾشفخ ِغ ثؼؼٙب ٚػذَ خٍـٙب ٚإ٠غبد اٌؼاللخ اٌمٛ٠خ ث١ٓ اٌّؾالد‬ ‫اٌّزشبثٙخ ٚاٌّزمبسثخ فٟ اٌزغبسح.‬ ‫3- ػذَ لـغ اٌزغٍغً اٌزغبسٞ فٟ اٌفشاغبد اٌّؼّبس٠خ ثبعزؼّبي فشاؽ آخش غ١ش رغبسٞ.‬ ‫4- ِؾبٌٚخ عؼً اٌّّشاد اٌزغبس٠خ ِفزٛؽخ ِٓ عّ١غ األؿشاف ثؾ١ش رىْٛ راد ػشع ِٕبعت ثؾ١ش ٠ىْٛ ٕ٘بن‬ ‫أغ١بث١خ ٚرٛع١ٗ ٌؾشوخ اٌضثْٛ.‬ ‫5- ٠غت أْ رظُّ اٌّشاوض اٌزغبس٠خ ثشىً ؽ١ذ ثؾ١ش رؼًّ ػٍٝ عزة اٌضثبئٓ.‬ ‫6- ٠غت ِشاػبح اخز١بس شىً اٌّجٕٝ ثؾ١ش ٠ىْٛ ٕ٘بن ِالئّخ ِغ اٌّغبٚساد.‬
  • 62.
    ‫7- ٌٚزؾم١ك اٌغّبيفٟ اٌّشاوض اٌزغبس٠خ ٠غت ِشاػبح ِب ٠ٍٟ:‬ ‫1- رأِ١ٓ اٌٛؽذح فٟ اٌّشوض اٌزغبسٞ ِٓ ؽ١ش ا٢رٟ:‬ ‫أ- فٟ اعزّشاس اٌخـٛؽ األفم١خ ٌٍغمٛف ٚاٌّظالد.‬ ‫ة- فٟ اعزؼّبي ِبدح ٚاؽذح أٚ اصٕز١ٓ ػٍٝ األوضش فٟ إوغبء اٌٛاعٙبد.‬ ‫2- إػـبء اٌّشوض ؿبثؼً ِؼّبس٠ً خبطً.‬ ‫ب ب‬ ‫ب‬ ‫3- اٌّم١بط ٠غت أْ ٠شؼش ثٗ اٌّشبح ٚساوت اٌغ١بسح.‬ ‫4- اال٘زّبَ ثذساعخ اٌٛاعٙبد ِٓ ٔبؽ١خ اٌّظّذ ٚاٌّفزٛػ ِٚٛاد اٌجٕبء ... إٌخ.‬ ‫8- اؽزٛاء اٌّزبعش اٌىجشٜ ٚرؾزٛٞ اٌّزبعش اٌىجشٜ طبالد ِذاٌٚخ ٚػشع، ِٚـبػُ، ِٚمبٟ٘، ٚؽذائك أؿفبي، ِٚظبسف، ِٚىبرت‬ ‫ثش٠ذ، ٚٚوبالد عفش، ٚطبالد ع١ّٕب ِٚالٟ٘، ٚأِبوٓ خؼشاء، ٚال ٕٔغٝ ٚعٛد ِغغذ أٚ ِظٍٝ. ٚ٠غت أ٠ؼً ٚعٛد ِزبعش طغ١شح‬ ‫ب‬ ‫ِؼضٌٚخ ٌٍض١بة ػبدح ؽٛي اٌّشاوض اٌزغبس٠خ.‬ ‫9- رٛػغ طبالد اٌج١غ ِجبششح اٌٛاؽذح فٛق األخشٜ ٚلش٠جخ لذس األِبوٓ ِٓ ؿبثك اٌّذخً ِٚٓ األفؼً إٔشبء ؿبثك إػبفٟ إٔشبء‬ ‫طبالد اٌج١غ رؾذ األسع ٚرغزؼًّ اٌـٛاثك اٌؼٍٛ٠خ ٌٍّغزٛدػبد ٚطبالد اٌّٛظف١ٕٓ ٚفٟ اٌـبثك األخ١ش اإلداسح.‬
  • 63.
    ‫صبٔ١ً: اٌّؼب٠١ش اٌزخـ١ـ١خٚاٌزظّ١ّ١خ ٌٍغضء اٌغىٕٟ‬ ‫ب‬ ‫أ- اٌزٛع١ٗ:‬ ‫٠زُ رٛع١ٗ اٌٛؽذاد اٌغىٕ١خ ثشىً ػبَ ٔؾٛ االرغبٖ اٌغٕٛثٟ اٌششلٟ أٚ اٌغٕٛثٟ اٌغشثٟ ٚ٠زُ رفبدٞ اٌزٛع١ٗ اٌشّبٌٟ ٚفشٚػٗ‬ ‫فٟ اٌ١ّٓ ٚرٌه ثغجت اٌش٠بػ اٌغبئذح اٌشّبٌ١خ اٌششل١خ اٌؼبسح.‬ ‫ة- اٌخذِبد اٌّزٛفشح :‬ ‫1- عالٌُ ِٚظبػذ وٙشثبئ١خ.‬ ‫2- ِشاػبح ٚعٛد رظش٠ف ع١ذ ِٚؼبٌظ ٌٍمّبِخ.‬ ‫3- ثٕ١خ رؾز١خ ٌٍّششٚع ٚرٌه ِٓ خالي اخز١بس ِٛفك ٌٍّٛلغ.‬ ‫4- عالٌُ ٘شٚة رٛفش اٌؾّب٠خ ٚاألِبْ ٌٍغبوٓ أصٕبء ؽذٚس ؽش٠ك أٚ صٌضاي.‬ ‫5- رٛفش داس ٌٍؼجبدح "ِغغذ أٚ ِظٍٝ" فٟ ؽبٌخ ٚلٛع اٌّششٚع ثؼ١ذً ػٓ أؽذ ٘زٖ اٌذٚس.‬ ‫ا‬ ‫6- ِغبؽخ ٚأِبوٓ خؼشاء ِّٚشاد ِشبح.‬ ‫ط- اٌّذاخً ٚاٌّخبسط:‬ ‫1- ٠غت أْ رٛفش اٌّذاخً ٚاٌّخبسط ٌٍغضء اٌغىٕٟ خظٛط١خ ربِخ ِٓ خالي ػضٌٙب ػٓ ثبلٟ أعضاء اٌّغّغ.‬ ‫2- أْ رىْٛ ِزظٍخ ارظبي ِجبشش ثّٛالف اٌغ١بساد.‬ ‫3- ِشاػبح ارظبٌٙب ِغ اٌغضء اٌزغبسٞ ِغ رؾم١ك اٌخظٛط١خ.‬
  • 64.
    ‫د- ِٛالف اٌغ١بساد:‬ ‫1-أْ رىْٛ ِؼضٌٚخ ٚخبطخ ثبٌغىبْ فمؾ ِٚزظٍخ ارظبي ِجبشش ِغ ِخبسط ِٚذاخً اٌشمك اٌغىٕ١خ.‬ ‫2- رأخز وّؼ١بس ِٛلف ع١بسح ٌىً شمخ.‬ ‫3- سثـٙب ثّّشاد ِشبح ِغـبح ِٚؾّ١خ ِٓ اٌّـش ٚاٌشّظ.‬ ‫٘ـ- اٌخظٛط١خ:‬ ‫1- ػبًِ اٌخظٛط١خ فٟ ِضً ٘زٖ اٌّشبس٠غ ٠غت أْ ٠شاػٝ ثشىً أعبعٟ.‬ ‫2- اٌّؾبفظخ ػٍٝ اٌخظٛط١خ فٟ ٘زا اٌغبٔت ع١غؼً ِٓ ٘زا اٌّشوض ِشوضً ؽ١ٛ٠ً ٚٔشـً.‬ ‫ا ب ب‬
  • 65.
    ‫صبٌضً- اٌّؼب٠١ش اٌزظّ١ّ١خٚاٌزخـ١ـ١خ ٌٍغضء اإلداسٞ‬ ‫ب‬ ‫1- رؼزّذ اإلػبءح فٟ اٌّجبٟٔ اإلداس٠خ ػٍٝ اإلػبءح اٌـج١ؼ١خ اٌّجبششح أٚ غ١ش اٌّجبششح ٚ٘زٖ رىْٛ ِٓ خالي فزؾبد اٌؾٛائؾ اٌغبٔج١خ‬ ‫ؽ١ش ٠ؼزجش االرغبٖ اٌغٕٛثٟ ِظذس أشؼخ اٌشّظ ٚرؼزّذ وّ١خ اإلػبءح ػٍٝ أثؼبد اٌشجبث١ه ِٚٛلؼٙب فٟ اٌغذساْ.‬ ‫2- رؼزّذ اٌزٙٛ٠خ فٟ اٌّجبٟٔ اإلداس٠خ ػٍٝ اٌزٙٛ٠خ اٌّجبششح ٚاٌزٟ رىْٛ ِٓ خالي اٌفزؾبد ؽ١ش رؼزجش ارغبٖ اٌشّبي ٘ٛ ِظذس ؽشوخ‬ ‫اٌٙٛاء األعبع١خ.‬ ‫3- ػبدح رىْٛ اٌّجبٟٔ اإلداس٠خ رٛع١ٗ ثؾ١ش ٠زٛفش ِٓ خالٌٗ اإلػبءح ٚاٌزٙٛ٠خ إٌّبعجخ ٌىً ِىْٛ ِٓ ِىٛٔبد اإلداسح اٌزٟ ٟ٘ :‬ ‫غشف ِىبرت - عىشربس٠خ- ِىبرت أخشٜ- ؽّبَ - ِـجخ . ٚػبدح رىْٛ اٌؾّبِبد ٚاٌّـبثخ فٟ اٌزٛط١خ إٌٝ داخً اٌّجبٟٔ اإلداس٠خ‬ ‫رؼبء ٚرزٜٙٛ ِٓ ِٕبٚس خبطخ ثٙب.‬ ‫4- اٌؼضي اٌظٛرٟ ٠ؼزجش ُِٙ فٟ ػٕبطش اٌّجبٟٔ اإلداس٠خ ثؾ١ش ال ثذ ِٓ فظً اٌغضء اٌّضػظ ػٓ اٌٙبدا ثؾ١ش ٠ؼزجش ث١ذ اٌغٍُ‬ ‫(وٛس اإلٔشبء) ٘ٛ اٌغضء اٌّضػظ ٌٙزا ال ثذ ِٓ فظً اٌغضء اٌٙبدا (ِىبرت إداس٠خ) ػٓ (اٌىٛس اإلٔشبئٟ) ثٛعٛد فشاغبد أخشٜ.‬ ‫5- ٠غت أْ رىْٛ اٌؾشوخ داخً اٌّجبٟٔ اإلداس٠خ ٚاػؾخ ٚعٍٙخ ٚ٘زا ٠أرٟ ِٓ خالي اٌؼاللبد اٌٛظ١ف١خ ٌؼٕبطش اٌّجبٟٔ اإلداس٠خ.‬ ‫6- ٌٍّجبٟٔ اإلداس٠خ ِذخً سئ١غٟ ٚ٘زا ٠ىْٛ ِٓ ٚاعٙخ سئ١غ١خ أٚ عبٔج١خ ٚلذ ٠ىْٛ ِـً ػٍٝ عبؽخ ٚ٘زا ٠خزٍف فٟ اٌزظّ١ُ‬ ‫اٌّؼّبسٞ ٌىً ِٓ اٌضٚا٠ب.‬ ‫7- ٌٍّجبٟٔ اإلداس٠خ أشىبي ِخزٍفخ فبٌّجٕٝ اإلداسٞ ٠ىْٛ ػٍٝ شىً ِشثغ أٚ ِغزـ١ً أٚ ػبدح ِب رىْٛ ٘زٖ األشىبي ػٍٝ ؽشف "‪”U‬‬ ‫أٚ ِبٚ "‪ "T‬أٚ أشىبي ِؼٍؼخ.‬ ‫8- ػٕذ ؽغبة أثؼبد اٌّجٕٝ اإلداسٞ ٠غت أْ ٠ؤخز ثؼ١ٓ االػزجبس – اٌّغبفخ اٌالصِخ ٌؾشوخ اإلٔغبْ داخً لؼبء ِؼ١ٓ- اٌّغبفخ‬ ‫اٌالصِخ اٌفبطٍخ ث١ٓ ػٕبطش اٌفشػ اٌؼبِخ ٚثٙزا رغزـ١غ أْ رؼشف ِب ٟ٘ اٌّغبفخ اٌالصِخ اٌزٞ ٠ؾزبعٙب وً ِىْٛ ِٓ ِىٛٔبد‬ ‫اٌّجٕٝ اإلداسٞ.‬
  • 66.
    ‫ساثؼً- اٌّؼب٠١ش اٌزظّ١ّ١خٌٍّـؼُ:‬ ‫ب‬ ‫1- ٠فؼً أْ رىْٛ إػبءح اٌّـؼُ ؿج١ؼ١خ عٛاء وبٔذ ِجبششح أَ غ١ش ِجبششح ٚ٘زا ٠ىْٛ ِٓ خالي رٛع١ٙٙب ٌّظذس اٌشّظ ٟٚ٘‬ ‫عٙخ اٌغٕٛة اٌششلٟ أٚ اٌغٕٛة اٌغشثٟ.‬ ‫2- رىْٛ رٙٛ٠خ اٌّـبػُ ػبدح رٙٛ٠خ ؿج١ؼ١خ ٚ٘زٖ ِٓ خالي اٌفزؾبد ؽ١ش ٠ّىٓ اٌزؾىُ فٟ وّ١خ اٌزٙٛ٠خ ِٓ خالي رؾىّٕب فٟ ؽغُ‬ ‫اٌفزؾبد ِٚٛلؼٙب ثبٌٕغجخ ٌٍغذاس ٚاٌّغبفخ ف١ّب ث١ُٕٙ.‬ ‫3- ٠فؼً أْ ٠ىْٛ رٛع١ٗ طبٌخ اٌّـؼُ ِٓ عٙخ اٌغٕٛة أٚ اٌغٕٛة اٌششلٟ أٚ اٌغٕٛة اٌغشثٟ ٌٕؾظً ػٍٝ اإلػبءح ٚاٌزٙٛ٠خ اٌالصِز١ٓ‬ ‫ٌٙب، أِب ثبٌٕغجخ ٌخذِبرٙب األخشٜ (ِخبصْ ، إداسح ، ؽّبِبد) ف١ّىٓ أْ رىْٛ فٟ اٌغٙخ اٌشّبٌ١خ.‬ ‫4- ال رؾزبط طبالد اٌّـؼُ إٌٝ ػضي طٛرٟ ؽ١ش أٔٙب رؼزجش ػٕظش رغّغ ال ٠ؾزبط إٌٝ اٌٙذٚء.‬ ‫5- ال ثذ أْ ٠ىْٛ ٕ٘بن فظً ث١ٓ ؽشوخ إٌبط ٚدخٌُٛٙ إٌٝ طبٌخ اٌّـؼُ ٚؽشوخ اٌؼبٍِ١ٓ فٟ ِـجخ اٌّـؼُ ثؾ١ش ال رخزٍؾ اٌؾشوز١ٓ‬ ‫ٌزغٕت أٞ ٔٛع ِٓ اإلسثبن أٚ اإلصدؽبَ.‬ ‫6- ٠خظض ػبدح ِذخً خبص ٚخذِٟ ٌذخٛي اٌجؼبئغ إٌٝ ِخبصْ اٌّـؼُ ٚخبص أ٠ؼً ثذخٛي اٌؼبٍِ١ٓ، ِٚذخً آخش ٌذخٛي اٌـالة ٚاٌضٚاس‬ ‫ب‬ ‫ٚؽ١ش ال ثذ أْ ٠ىْٛ اٌّذخً اٌشئ١غٟ ٚاػؼ ٚظب٘ش ثؼىظ اٌّذخً اٌخذِٟ اٌزٞ ٠غت أْ ٠ىْٛ عبٔجٟ.‬ ‫7- رؾغت أثؼبد ِٚغبؽخ اٌّـؼُ ػٍٝ أعبط ِب ٠غزٛػجٗ اٌّـؼُ ِٓ أشخبص ؽ١ش ٠زُ ؽغبة ِغبؽخ ِغ األخز ثؼ١ٓ اإلػزجبس اٌّغبؽخ‬ ‫اٌالصِخ ٌألصبس ٚؽشوخ اٌؼبٍِ١ٓ ٚاألشخبص ٚؽغبة اٌّغبؽخ اٌالصِخ ٌٍخذِبد.‬ ‫8- ٕ٘بن ؽش٠خ ربِخ فٟ اخز١بس شىً طبالد اٌّـؼُ ف١ّىٓ أْ رىْٛ راد شىً اػز١بدٞ (ِشثغ أٚ ِغزـ١ً) ٚ٠ّىٓ أْ رىْٛ رٚ‬ ‫شىً ِزّ١ض (األشىبي اٌّؼٍؼخ ٚاٌذائش٠خ ٚغ١ش٘ب).‬
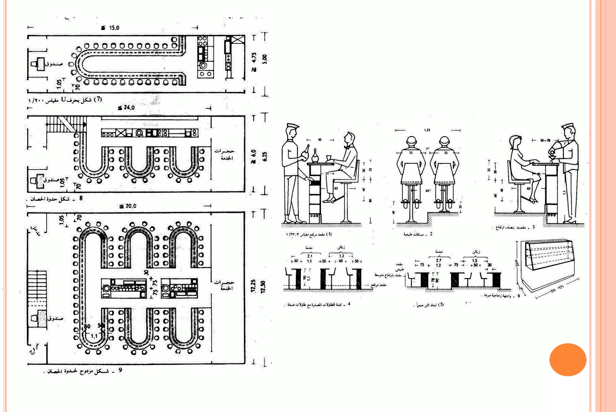
  • 67.
    ‫خبِغً - اٌّؼب٠١شاٌزظّ١ّ١خ ٚاٌزخـ١ـ١خ ٌٍؾذائك ِٚٛالف اٌغ١بساد‬ ‫ب‬ ‫اٌؾذائك :-‬ ‫ّٔؾ اٌؾذ٠مخ ٠فؼً أْ رىْٛ اٌؾذائك ِغّؼخ ثؾ١ش رزغّغ ؽٌٛٙب اٌىزً األخشٜ ٚ٠ّىٓ أْ ٠ىْٛ فؼبء اٌؾذ٠مخ‬ ‫٠أد فٟ اٌّؾٛس األعبعٟ ٌٍّٛلغ ثؾ١ش ٘زا اٌّؾٛس ٠ٕزٟٙ فٟ األخ١ش رٚ أّ٘١خ فٟ اٌّششٚع ٚ٠ّىٓ أْ رىْٛ‬ ‫اٌؾذ٠مخ ػجبسح ػٓ ػذح أعضاء ثؾ١ش وً عضء ٠ٍزف ؽٌٛٗ ػذح وزً ثبإلػبفخ إٌٝ ٚعٛد ؽذائك ِزٕبصشح رؼزجش أِبوٓ‬ ‫عٍٛط اٌؼبٍِ١ٓ ٚاٌضٚاس.‬ ‫ِٛالف اٌغ١بساد:-‬ ‫رخظض ػبدح ِٛالف ٌٍغ١بساد ثؾ١ش رخذَ ع١بساد اٌغىبْ ٚاٌضٚاس ٚاٌؼبٍِ١ٓ ٚ٘زٖ اٌّٛالف ػبدح رىْٛ ِٛصع‬ ‫ؽٛي اٌّششٚع ثشىً ِزٕبعك ٕٚ٘بن أ٠ؼً ِٛالف رخظض ٌغ١بساد اٌخذِخ اٌىج١شح. ٚػبدح رىْٛ ٘زٖ اٌّٛالف‬ ‫ب‬ ‫إِب ثبٌضاٚ٠خ 09 أٚ ِبئٍخ اٌضاٚ٠خ "03 أٚ 06" ِغ ِشاػبح أْ رخظض ٌٙزٖ اٌّٛالف ِّشاد خذِ١خ فٟ ؽبٌخ ٚعٛد‬ ‫ػـً ٌٙزٖ اٌغ١بساد.‬
  • 68.
    ‫6- اٌىبفز١ش٠ب:‬ ‫اٌٙذف ِٕٙب:‬ ‫رمذ٠ُ اٌّششٚثبد ٚاٌّشؿجبد ٚاٌٛعجبد اٌخف١فخ ٚوزا‬ ‫ٚعجٗ اإلفـبس ٚرمذَ خذِبرٙب ٌضٚاس اٌّزؾف ٚوزا ٌّٛظفٟ‬ ‫اٌّزؾف.‬ ‫ِؼ١بس ػبَ ٌزأص١ش اٌىبفز١ش٠ب:‬ ‫1- ٠ّىٓ اعزخذاَ ؿش٠مخ اٌىبٚٔزش اٌّشزشن ٌٍزٛص٠غ ٔظشً ٌمظش‬ ‫ا‬ ‫اٌٛلذ اٌزٞ ٠ّىضٗ اٌضثبئٓ.‬ ‫2- ٠زُ رٛص٠غ اٌـبٚالد ٚاٌىشاعٟ ثؾ١ش رّىٓ ِٓ اٌغٍٛط‬ ‫اٌّش٠ؼ أصٕبء رٕبٚي اٌـؼبْ ٚثؾ١ش ٠زُ رٛف١ش األثؼبد‬ ‫ٚاٌّغبفبد اٌالصِخ ٌؾشوخ األشخبص ٚوزا ٌٍزخذ٠ُ، وّب ٘ٛ‬ ‫ِٛػؼ ثبٌشعِٛبد .‬
  • 70.
  • 72.
    ‫انباب : انسادس‬ ‫(انفرشجلميع مكىنات ادلشروع)‬
  • 73.
    ‫أٚ ً :اٌّشاوض ٚاٌّؾالد اٌزغبس٠خ :‬ ‫ال‬
  • 82.
  • 87.
  • 88.
  • 90.
  • 91.
  • 94.
  • 96.
  • 97.
  • 100.
    ‫رٕـ١ك ِٛلغ اٌّششٚع‬ ‫ِٛالف ع١بساد‬ ‫1- اٌغضء اٌزغبسٞ‬ ‫خبطخ ثبٌغضء اٌزغبسٞ‬ ‫2- اٌغضء اإلداسٞ‬ ‫3- اٌغضء اٌغىٕٟ‬ ‫1‬ ‫2‬ ‫3‬ ‫ِغبؽبد خؼشاء‬
  • 101.
    ‫اٌخبرّخ‬ ‫فٟ ٔٙب٠خ ٘زٖاٌذساعخ اٌزؾٍ١ٍ١خ ٚطٍٕب إٌٝ ٔز١غخ رج١ٓ ٌٕب أّ٘١خ ٘زا اٌّششٚع ِٓ إٌبؽ١خ‬ ‫اٌزظّ١ّ١خ ٚاٌزخـ١ـ١خ ٚثبٌّغزٜٛ اٌزٞ ٠غت أْ ٠زُ رٕف١ز ٘زا اٌّششٚع، ؿجمً ألػٍٝ‬ ‫ب‬ ‫اٌّؼب٠١ش ٢ْ ٘زا اٌّششٚع ٠غٍت ػٍ١خ اٌغبٔت اٌزغبسٞ اٌزٞ ع١شعغ ثؼبئذ ػخُ ٌٍزٞ‬ ‫ع١زٌٛٝ رٕف١ز ٘زا اٌّششٚع.‬ ‫اٌشٟء اٌُّٙ ٘ٛ إٔٔب إٌّّٔب ثمذس وج١ش ِٓ ٘زا اٌذساعخ ِٓ ٔبؽ١خ اٌّغبؽبد ٚاٌّىٛٔبد‬ ‫ٚاٌّؼب٠١ش اٌزظّ١ّ١خ ٚاٌزخـ١ـ١خ ٚأ٠ؼً اٌذساعخ إٌّبخ١خ اٌزٟ رخض ِٛلؼٕب ٘زا.‬ ‫ب‬ ‫ٔغأي اهلل أْ ٠غزف١ذ ِٓ ٘زٖ اٌذساعخ أوجش لذس ِّٓ ٠ٙزّْٛ ثٙزٖ اٌّشبس٠غ.‬
  • 102.
    ‫اٌّشاعغ‬ ‫• ػٕبطش اٌزظّ١ُ اٌّؼّبسٞ ( ‪. ) ERNST NEUFERT‬‬ ‫• ‪. TIME SAVER‬‬ ‫• ِغٍخ اٌجٕبء‬ ‫• دساعبد عبثمخ‬ ‫• وزبة األثٕ١خ اٌغىٕ١خ اٌزغبس٠خ اإلداس٠خ (رأٌ١ف َ /ِؾّذ ِبعذ خٍٛطٟ) داس لبثظ -ٌجٕبْ ث١شٚد‬ ‫8991.‬ ‫• عٍٛن رشى١ً اٌفؼبءاد اٌّؼّبس٠خ فٟ اٌؼّبسح اٌ١ّٕ١خ اٌـ١ٕ١خ ثؾش ِمذَ ٌّؤرّش اٌؼّبسح‬ ‫اٌـ١ٕ١خ‬ ‫ع١ئْٛ - ؽؼشِٛد (01-2002/21َ )‬