DNUP
9 10 12 13 14
BB
CC
D
E
F
51000
2875
1900
65.30 m²
STAGE
11
9000900090009000
36000
473.53 m²
GYMNASIUM
102
30.34 m²
CHANGE
ROOM+W.R.
15
30.24 m²
CHANGE
ROOM+W.R.
16
27.84 m²
SHIPPING/
RECEIVING
20
11.76 m²
OUTDOOR
STOR
23
9.16 m²
ELECTRICAL
27
4.46 m²
WASHROOM
28
1924
31.03 m²
GARBAGE
30
1924
9.69 m²
STORAGE
31
4082
12.22 m²
CUSTODIAL
SERVICES
32
127.00 m²
MUSIC
33
8
9.71 m²
INSTRUMENT
34
14.80 m²
PRACTICE
35
A
3802 3798
14.88 m²
ATHLETIC
STORAGE
43
4493
9.80 m²
CARE
TAKERS
OFFICE
44
2267
16939
27300
.
2662
90002500
11500
9.26 m²
SPRINKLER
19
CORRIDOR
46
1574
1000
11.29 m²
ATHLETIC
STORAGE
48
8500 8500 17000 8500 8500
10.14m²
CHAIR&
TABLE
47
G.P. ENTRY
51
10.14m²
CHAIR&
TABLE
52
1100
3.33 m²
JANITOR
53
1
A401
2
A401
NORTH
2617
SUSTAINABLE DESIGN STRATEGIES
1. USE OF HIGH PERFORMANCE WINDOWS,
THERMALLY BROKEN ALUMINUM FRAMES
AND LOW E-COATING GLASS.
2. HIGH AN LOW OPERABLE WINDOWS FOR
PASSIVE NATURAL VENTILATION.
3. CLERESTORY WINDOWS ADMINT
DAYLIGHTING TO PROVIDE AN 5%
AVERAGE IN ALL GYMNASIUM.
4. DAYLIGHTING SENSORS AND SEPARATE
SWITCHES FOR LIGHTING FIXTURES NEAR
WINDOWS.
1
A605
11
ENTRANCE
101
-
---
9.38 m²
BOILER+ELEV
MACH.
(BASEMENT)
125
-
---
-
---
-
---
SCALECHECKED BY
DATE
PROJECT Nº
DRAWN BY
3/9/20163:11:23PM
1 : 100
NORTH WING - GROUND FLOOR
CDELEMENTARY SCHOOL
"SIMON RODRIGUEZ"
MARCH 29TH,2016
PATRICK K.
A201CARLOS RADIC BIAZIK50 UPPER ROUGE TRAIL, SCARBOROUGH, ON
M1B 6K4
1 : 100
GROUND FLOOR NORTH WING
1
UP
DNDNDN
1 2 3 4 5 6
G
H
J
20300
11600
8700
7
9000 9000 9000 9000 9000 6000
51000
75.78 m²
PRIMARY
121
74.97 m²
PRIMARY
2
74.97 m²
PRIMARY
3
74.97 m²
PRIMARY
4
74.97 m²
PRIMARY
5
75.82 m²
PRIMARY
6
75.02 m²
PRIMARY
7
75.02 m²
PRIMARY
8
75.02 m²
SPECIAL
EDUCATION
9
75.02 m²
PRIMARY
10
2895
46.74 m²
RESOURCE
ROOM
14
7'
25.13 m²
ACADEMIC
18
9000 9000 9000 9000 9000
51000
3
A402
6'
3350 2650
4
A402
TYP
8810
CORRIDOR
103
5
A402
TYP
8510
NORTH
SUSTAINABLE DESIGN STRATEGIES
1. USE OF HIGH PERFORMANCE WINDOWS,
THERMALLY BROKEN ALUMINUM FRAMES
AND LOW E-COATING GLASS.
2. HIGH AN LOW OPERABLE WINDOWS FOR
PASSIVE NATURAL VENTILATION.
3. CLERESTORY WINDOWS ADMINT
DAYLIGHTING TO PROVIDE AN 5%
AVERAGE IN ALL GYMNASIUM.
4. DAYLIGHTING SENSORS AND SEPARATE
SWITCHES FOR LIGHTING FIXTURES NEAR
WINDOWS.
9.38 m²
BOILER+ELEV
MACH.
(BASEMENT)
125
-
---
SCALECHECKED BY
DATE
PROJECT Nº
DRAWN BY
3/9/20163:11:23PM
1 : 100
WEST WING - GROUND FLOOR
CDELEMENTARY SCHOOL
"SIMON RODRIGUEZ"
MARCH 29TH,2016
PATRICK KUSMIDER
A203CARLOS RADIC BIAZIK50 UPPER ROUGE TRAIL, SCARBOROUGH, ON
M1B 6K4
1 : 100
GROUNND FLOOR WEST WING
1
GROUND FLOOR
T.O. SLAB
0
SECOND FLOOR
T.O. SLAB
4000
FOOTINGS
B.O. FOUND W.
-1500
BCDEF
ROOF T.O.
SLAB/DECK
8000
PARAPET
ROOF
8500
PARAPET 2ND
FLOOR
4500
A
?? ??
800
500350050040001500
8500
3180
OPENINGS/WALL SURFACE RATIOS:
FLOOR:
GROUND FLOOR:
SECOND FLOOR
TOTAL:
WALL AREA (M2):
156
138
294
OPENING AREA (M2):
6WX3+2DX4.1X=26.20
9X1.15=10.35
.=36.55
WIND/WALL
RATIO:
12.50%
?? ??
GROUND FLOOR
T.O. SLAB
0
SECOND FLOOR
T.O. SLAB
4000
FOOTINGS
B.O. FOUND W.
-1500
910121314
ROOF T.O.
SLAB/DECK
8000
8
PARAPET
ROOF
8500
PARAPET 2ND
FLOOR
4500
?? ??
1005
2300
500350050040001500
OPENINGS/WALL SURFACE RATIOS:
FLOOR:
GROUND FLOOR:
SECOND FLOOR
TOTAL:
WALL AREA (M2):
206
61
267
OPENING AREA (M2):
4.5WX1.15+1X3.00= 8.23
4X1.15= 2.30
.=10.53
WIND/WALL
RATIO:
5%
?? ??
11
SECOND FLOOR
T.O. SLAB
4000
FOOTINGS
B.O. FOUND W.
-1500
G H J
ROOF T.O.
SLAB/DECK
8000
PARAPET
ROOF
8500
PARAPET 2ND
FLOOR
4500
BASEMENT
T.O. SLAB
-2200
2409
500350050040001500700
85002200
WEST SIDE NO WINDOWS
SCALECHECKED BY
DATE
PROJECT Nº
DRAWN BY
3/9/20163:11:23PM
1 : 100
ELEVATIONS 3-5
CDELEMENTARY SCHOOL
"SIMON RODRIGUEZ"
MARCH 29TH,2016
PATRICK KUSMIDER
A302CARLOS RADIC BIAZIK50 UPPER ROUGE TRAIL, SCARBOROUGH, ON
M1B 6K4
1 : 100
NORTH-EAST ELEVATION
4
1 : 100
NORTH-WEST ELEVATION
5
1 : 100
WEST ELEVATION (WEST WING)
3
GROUND FLOOR
T.O. SLAB
0
SECOND FLOOR
T.O. SLAB
4000
FOOTINGS
B.O. FOUND W.
-1500
G H J
ROOF T.O.
SLAB/DECK
8000
PARAPET
ROOF
8500
PARAPET 2ND
FLOOR
4500
3
A402
BASEMENT
T.O. SLAB
-2200
500350050040001500700
85002200
36353625
INTERMEDIATE
37
PRIMARY
6
PRIMARY
121
CORRIDOR
103
CORRIDOR
103
1
A501
150
GROUND FLOOR
T.O. SLAB
0
SECOND FLOOR
T.O. SLAB
4000
FOOTINGS
B.O. FOUND W.
-1500
G H J
ROOF T.O.
SLAB/DECK
8000
PARAPET
ROOF
8500
PARAPET 2ND
FLOOR
4500
????
BASEMENT
T.O. SLAB
-2200
500350050040001500700
85002200
36353625415
SCIENCE ROOM
205
RESOURCE ROOM
14
BOILER + ELEV MACH
78
ACADEMIC
18
????
2
A501
3690
310
4
A501
GROUND FLOOR
T.O. SLAB
0
SECOND FLOOR
T.O. SLAB
4000
FOOTINGS
B.O. FOUND W.
-1500
1 2 3 4 5 6 7
ROOF T.O.
SLAB/DECK
8000
PARAPET
ROOF
8500
PARAPET 2ND
FLOOR
4500
? ?? ?
BASEMENT
T.O. SLAB
-2200
500350050040001500700
85002200
PRIMARY
6
INTERMEDIATE
37
INTERMEDIATE
38
PRIMARY
7
INTERMEDIATE
39
PRIMARY
8
INTERMEDIATE
40
SPECIAL EDUCATION
9
SCIENCE ROOM
205
PRIMARY
10
RESOURCE ROOM
14
? ?? ?
SCALECHECKED BY
DATE
PROJECT Nº
DRAWN BY
3/9/20163:11:23PM
1 : 100
SECTIONS 3-5
CDELEMENTARY SCHOOL
"SIMON RODRIGUEZ"
MARCH 29TH,2016
PATRICK KUSMIDER
A402CARLOS RADIC BIAZIK50 UPPER ROUGE TRAIL, SCARBOROUGH, ON
M1B 6K4
1 : 100
SECTION 2
4 1 : 100
SECTION 1
5
1 : 100
Section 5
3
GROUND FLOOR
T.O. SLAB
0
SECOND FLOOR
T.O. SLAB
4000
FOOTINGS
B.O. FOUND W.
-1500
H
ROOF T.O.
SLAB/DECK
8000
PARAPET
ROOF
8500
EXTERIOR
1
A603
2
A607
CELLING
W5
P3
PRIMARY
CORRIDOR
CORRIDOR
3000
600 R2
F2
F1
3000583533
SPRAY FIREPROOFING ON
STRUCT. STEEL MEMBERS
50mm CONTINOUS RIGID INS
627415
W3
38385123635
DUCTS
6
A601
7
A601
GROUND FLOOR
T.O. SLAB
0
SECOND FLOOR
T.O. SLAB
4000
FOOTINGS
B.O. FOUND W.
-1500
J
ROOF T.O.
SLAB/DECK
8000
PARAPET
ROOF
8500
R2
F2
F1
3.3%
EXTERIOR
RESOURCE ROOM
SCIENCE ROOM
W2
15061517007806706151700780670600
80
15
80
15
CLERESTORY WINDOWS
P1
W2
22362735854153635
2
A602
1
A602
-
---
GROUND FLOOR
T.O. SLAB
0
SECOND FLOOR
T.O. SLAB
4000
FOOTINGS
B.O. FOUND W.
-1500
12
ROOF T.O.
SLAB/DECK
8000
PARAPET
ROOF
8500
? ?? ?
? ?? ?
3
A603
1
A607
GYMNASIUM
102
R1
F1
3.3%
W1
P1
EXTERIOR
15
6710
406
3
A601
5
A601
GROUND FLOOR
T.O. SLAB
0
SECOND FLOOR
T.O. SLAB
4000
G
PARAPET 2ND
FLOOR
4500
????
BASEMENT
T.O. SLAB
-2200
????
W2
P1
FD1
FD1
1.9%
BOILER+ELEV
MACH.
(BASEMENT)
BOILER + ELEV
MACH
EXTERIOR
R3
1
A604
W2
2
A604
SCALECHECKED BY
DATE
PROJECT Nº
DRAWN BY
3/9/20163:11:23PM
1 : 25
TYPICAL WALL SECTIONS
CDELEMENTARY SCHOOL
"SIMON RODRIGUEZ"
MARCH 29TH,2016
PATRICK KUSMIDER
A501CARLOS RADIC BIAZIK50 UPPER ROUGE TRAIL, SCARBOROUGH, ON
M1B 6K4
1 : 25
WALL SECTION 1
1
1 : 25
WALL SECTION 2
2 1 : 25
WALL SECTION 3
3
1 : 25
WALL SECTION 4
4
4
5
6
F
11
49 344
393
12961190
ENTRANCE
101
EXTERIOR
GYMNASIUM
102
190mm CMU190mm CMU
?
?
25mm AIR SPACE
W4
145
WRB
398
90mm CLAY BRICK
5mm DOUBLE PANEL GLASS
AND LOW-E COATING
STOREFRONT JAMB AT FINISH -
DOUBLE GLAZED
W1
W5
W2
443
61179203
97
METAL FLASHING
SILICONE CAULKINGSILICONE CAULKING
GROUND FLOOR
T.O. SLAB
0
FOOTINGS
B.O. FOUND W.
-1500
T.O. Footing
-1800
12
150
3.3%
901
61 179 203
456
GYMNASIUM
EXTERIOR
90mm CLAY BRICK
25mm AIR SPACE
75mm RIGID INSULATION
WRB
240mm CMU1005020015
RUBBER/VYNIL
COVER
BASE
TERRAZO FLOORING
CONCRETE
75mm RIGID INSULATION
EXPANSION JOINT FILLER
METAL FLASHING
BRICK VENT @ 600 mm
CEMENT SETTING BED
50mm (2")RIGID INSULATION
DAMPPROOFING
G
9
6'
BOILER+ELEV MACH.
(BASEMENT)
125
393
EXTERIOR W2
W2
W5
393
145.00°
90mm CLAY BRICK
25mm AIR SPACE
190mm CMU
190
203
203 190
CORRIDOR
FOUNDATION BELOW
12
ROOF T.O.
SLAB/DECK
8000
PARAPET
ROOF
8500
CRUSHED STONE/GRAVEL
EPDM ROOF MEMBRANE
BITUMEN ROOF CAP
PROTECTOR BOARD
75mm RIGID INSULATION
38mm STEEL DECK
PRECAST CONCRETE CAP
90mm CLAY BRICK
25mm AIR SPACE
WRB
41 179 215
435
600
204
150mm (6") METAL STUD FRAMING
H
ROOF T.O.
SLAB/DECK
8000
PARAPET
ROOF
8500
SQUARE EDGE (3/4 X 12 X 18)
DUCTS
CORRIDOR
EXTERIOR
600
223
ALUMINUM PANEL
25mm AIR SPACE
75mm RIGID INSULATION
BITUMEN ROOF CAP
EPDM ROOF MEMBRANE
BONDED GLASS FIBER BOARDWRB
HOLLOW-CORE CONCRETE
SLAB
190mm CMU
127 187 34
347
SECOND FLOOR
T.O. SLAB
4000
H
PARAPET 2ND
FLOOR
4500
DUCTS
127 187
314
162350
512
65350
415
ALUMINUM PANEL
75mm RIGID INSULATION
190mm CMU
25mm AIR SPACE
COVE TRIM
TERRAZO FLOORING
PRECAST CONCRETE CAP
HOLLOW-CORE CONCRETE
SLAB
HOLLOW-CORE CONCRETE
SLAB
EPDM ROOF MEMBRANE
BONDED GLASS FIBER BOARD
75mm RIGID INSULATION
WRB
635
12mm GYP BD
BULK HEAD
SPRAY FIREPROOFING ON
STRUCT. STEEL MEMBERS
67
414
SQUARE EDGE (3/4 X 12 X 18)
SCALECHECKED BY
DATE
PROJECT Nº
DRAWN BY
3/9/20163:11:23PM
1 : 10
DETAILS
CDELEMENTARY SCHOOL
"SIMON RODRIGUEZ"
MARCH 29TH,2016
Checker
A601Author50 UPPER ROUGE TRAIL, SCARBOROUGH, ON
M1B 6K4
1 : 10
DOUBLE HIGHT CMU WALL AND
COURTAIN WALL ITERSECTION
Copy 12
1 : 10
GYMNASIUM FOUNDATION Copy 1
3 1 : 10
NORTH-WEST EXTERIOR/IN-
TERIOR WALL INTERSECTION
Copy 14
1 : 10
PARAPET 2 Copy 1
5
1 : 10
PARAPET 3 Copy 1
6
1 : 10
ROOF/FLOOR INTERSECTION
Copy 1
7

School

  • 1.
    DNUP 9 10 1213 14 BB CC D E F 51000 2875 1900 65.30 m² STAGE 11 9000900090009000 36000 473.53 m² GYMNASIUM 102 30.34 m² CHANGE ROOM+W.R. 15 30.24 m² CHANGE ROOM+W.R. 16 27.84 m² SHIPPING/ RECEIVING 20 11.76 m² OUTDOOR STOR 23 9.16 m² ELECTRICAL 27 4.46 m² WASHROOM 28 1924 31.03 m² GARBAGE 30 1924 9.69 m² STORAGE 31 4082 12.22 m² CUSTODIAL SERVICES 32 127.00 m² MUSIC 33 8 9.71 m² INSTRUMENT 34 14.80 m² PRACTICE 35 A 3802 3798 14.88 m² ATHLETIC STORAGE 43 4493 9.80 m² CARE TAKERS OFFICE 44 2267 16939 27300 . 2662 90002500 11500 9.26 m² SPRINKLER 19 CORRIDOR 46 1574 1000 11.29 m² ATHLETIC STORAGE 48 8500 8500 17000 8500 8500 10.14m² CHAIR& TABLE 47 G.P. ENTRY 51 10.14m² CHAIR& TABLE 52 1100 3.33 m² JANITOR 53 1 A401 2 A401 NORTH 2617 SUSTAINABLE DESIGN STRATEGIES 1. USE OF HIGH PERFORMANCE WINDOWS, THERMALLY BROKEN ALUMINUM FRAMES AND LOW E-COATING GLASS. 2. HIGH AN LOW OPERABLE WINDOWS FOR PASSIVE NATURAL VENTILATION. 3. CLERESTORY WINDOWS ADMINT DAYLIGHTING TO PROVIDE AN 5% AVERAGE IN ALL GYMNASIUM. 4. DAYLIGHTING SENSORS AND SEPARATE SWITCHES FOR LIGHTING FIXTURES NEAR WINDOWS. 1 A605 11 ENTRANCE 101 - --- 9.38 m² BOILER+ELEV MACH. (BASEMENT) 125 - --- - --- - --- SCALECHECKED BY DATE PROJECT Nº DRAWN BY 3/9/20163:11:23PM 1 : 100 NORTH WING - GROUND FLOOR CDELEMENTARY SCHOOL "SIMON RODRIGUEZ" MARCH 29TH,2016 PATRICK K. A201CARLOS RADIC BIAZIK50 UPPER ROUGE TRAIL, SCARBOROUGH, ON M1B 6K4 1 : 100 GROUND FLOOR NORTH WING 1
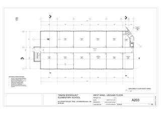
  • 2.
    UP DNDNDN 1 2 34 5 6 G H J 20300 11600 8700 7 9000 9000 9000 9000 9000 6000 51000 75.78 m² PRIMARY 121 74.97 m² PRIMARY 2 74.97 m² PRIMARY 3 74.97 m² PRIMARY 4 74.97 m² PRIMARY 5 75.82 m² PRIMARY 6 75.02 m² PRIMARY 7 75.02 m² PRIMARY 8 75.02 m² SPECIAL EDUCATION 9 75.02 m² PRIMARY 10 2895 46.74 m² RESOURCE ROOM 14 7' 25.13 m² ACADEMIC 18 9000 9000 9000 9000 9000 51000 3 A402 6' 3350 2650 4 A402 TYP 8810 CORRIDOR 103 5 A402 TYP 8510 NORTH SUSTAINABLE DESIGN STRATEGIES 1. USE OF HIGH PERFORMANCE WINDOWS, THERMALLY BROKEN ALUMINUM FRAMES AND LOW E-COATING GLASS. 2. HIGH AN LOW OPERABLE WINDOWS FOR PASSIVE NATURAL VENTILATION. 3. CLERESTORY WINDOWS ADMINT DAYLIGHTING TO PROVIDE AN 5% AVERAGE IN ALL GYMNASIUM. 4. DAYLIGHTING SENSORS AND SEPARATE SWITCHES FOR LIGHTING FIXTURES NEAR WINDOWS. 9.38 m² BOILER+ELEV MACH. (BASEMENT) 125 - --- SCALECHECKED BY DATE PROJECT Nº DRAWN BY 3/9/20163:11:23PM 1 : 100 WEST WING - GROUND FLOOR CDELEMENTARY SCHOOL "SIMON RODRIGUEZ" MARCH 29TH,2016 PATRICK KUSMIDER A203CARLOS RADIC BIAZIK50 UPPER ROUGE TRAIL, SCARBOROUGH, ON M1B 6K4 1 : 100 GROUNND FLOOR WEST WING 1
  • 3.
    GROUND FLOOR T.O. SLAB 0 SECONDFLOOR T.O. SLAB 4000 FOOTINGS B.O. FOUND W. -1500 BCDEF ROOF T.O. SLAB/DECK 8000 PARAPET ROOF 8500 PARAPET 2ND FLOOR 4500 A ?? ?? 800 500350050040001500 8500 3180 OPENINGS/WALL SURFACE RATIOS: FLOOR: GROUND FLOOR: SECOND FLOOR TOTAL: WALL AREA (M2): 156 138 294 OPENING AREA (M2): 6WX3+2DX4.1X=26.20 9X1.15=10.35 .=36.55 WIND/WALL RATIO: 12.50% ?? ?? GROUND FLOOR T.O. SLAB 0 SECOND FLOOR T.O. SLAB 4000 FOOTINGS B.O. FOUND W. -1500 910121314 ROOF T.O. SLAB/DECK 8000 8 PARAPET ROOF 8500 PARAPET 2ND FLOOR 4500 ?? ?? 1005 2300 500350050040001500 OPENINGS/WALL SURFACE RATIOS: FLOOR: GROUND FLOOR: SECOND FLOOR TOTAL: WALL AREA (M2): 206 61 267 OPENING AREA (M2): 4.5WX1.15+1X3.00= 8.23 4X1.15= 2.30 .=10.53 WIND/WALL RATIO: 5% ?? ?? 11 SECOND FLOOR T.O. SLAB 4000 FOOTINGS B.O. FOUND W. -1500 G H J ROOF T.O. SLAB/DECK 8000 PARAPET ROOF 8500 PARAPET 2ND FLOOR 4500 BASEMENT T.O. SLAB -2200 2409 500350050040001500700 85002200 WEST SIDE NO WINDOWS SCALECHECKED BY DATE PROJECT Nº DRAWN BY 3/9/20163:11:23PM 1 : 100 ELEVATIONS 3-5 CDELEMENTARY SCHOOL "SIMON RODRIGUEZ" MARCH 29TH,2016 PATRICK KUSMIDER A302CARLOS RADIC BIAZIK50 UPPER ROUGE TRAIL, SCARBOROUGH, ON M1B 6K4 1 : 100 NORTH-EAST ELEVATION 4 1 : 100 NORTH-WEST ELEVATION 5 1 : 100 WEST ELEVATION (WEST WING) 3
  • 4.
    GROUND FLOOR T.O. SLAB 0 SECONDFLOOR T.O. SLAB 4000 FOOTINGS B.O. FOUND W. -1500 G H J ROOF T.O. SLAB/DECK 8000 PARAPET ROOF 8500 PARAPET 2ND FLOOR 4500 3 A402 BASEMENT T.O. SLAB -2200 500350050040001500700 85002200 36353625 INTERMEDIATE 37 PRIMARY 6 PRIMARY 121 CORRIDOR 103 CORRIDOR 103 1 A501 150 GROUND FLOOR T.O. SLAB 0 SECOND FLOOR T.O. SLAB 4000 FOOTINGS B.O. FOUND W. -1500 G H J ROOF T.O. SLAB/DECK 8000 PARAPET ROOF 8500 PARAPET 2ND FLOOR 4500 ???? BASEMENT T.O. SLAB -2200 500350050040001500700 85002200 36353625415 SCIENCE ROOM 205 RESOURCE ROOM 14 BOILER + ELEV MACH 78 ACADEMIC 18 ???? 2 A501 3690 310 4 A501 GROUND FLOOR T.O. SLAB 0 SECOND FLOOR T.O. SLAB 4000 FOOTINGS B.O. FOUND W. -1500 1 2 3 4 5 6 7 ROOF T.O. SLAB/DECK 8000 PARAPET ROOF 8500 PARAPET 2ND FLOOR 4500 ? ?? ? BASEMENT T.O. SLAB -2200 500350050040001500700 85002200 PRIMARY 6 INTERMEDIATE 37 INTERMEDIATE 38 PRIMARY 7 INTERMEDIATE 39 PRIMARY 8 INTERMEDIATE 40 SPECIAL EDUCATION 9 SCIENCE ROOM 205 PRIMARY 10 RESOURCE ROOM 14 ? ?? ? SCALECHECKED BY DATE PROJECT Nº DRAWN BY 3/9/20163:11:23PM 1 : 100 SECTIONS 3-5 CDELEMENTARY SCHOOL "SIMON RODRIGUEZ" MARCH 29TH,2016 PATRICK KUSMIDER A402CARLOS RADIC BIAZIK50 UPPER ROUGE TRAIL, SCARBOROUGH, ON M1B 6K4 1 : 100 SECTION 2 4 1 : 100 SECTION 1 5 1 : 100 Section 5 3
  • 5.
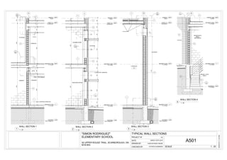
    GROUND FLOOR T.O. SLAB 0 SECONDFLOOR T.O. SLAB 4000 FOOTINGS B.O. FOUND W. -1500 H ROOF T.O. SLAB/DECK 8000 PARAPET ROOF 8500 EXTERIOR 1 A603 2 A607 CELLING W5 P3 PRIMARY CORRIDOR CORRIDOR 3000 600 R2 F2 F1 3000583533 SPRAY FIREPROOFING ON STRUCT. STEEL MEMBERS 50mm CONTINOUS RIGID INS 627415 W3 38385123635 DUCTS 6 A601 7 A601 GROUND FLOOR T.O. SLAB 0 SECOND FLOOR T.O. SLAB 4000 FOOTINGS B.O. FOUND W. -1500 J ROOF T.O. SLAB/DECK 8000 PARAPET ROOF 8500 R2 F2 F1 3.3% EXTERIOR RESOURCE ROOM SCIENCE ROOM W2 15061517007806706151700780670600 80 15 80 15 CLERESTORY WINDOWS P1 W2 22362735854153635 2 A602 1 A602 - --- GROUND FLOOR T.O. SLAB 0 SECOND FLOOR T.O. SLAB 4000 FOOTINGS B.O. FOUND W. -1500 12 ROOF T.O. SLAB/DECK 8000 PARAPET ROOF 8500 ? ?? ? ? ?? ? 3 A603 1 A607 GYMNASIUM 102 R1 F1 3.3% W1 P1 EXTERIOR 15 6710 406 3 A601 5 A601 GROUND FLOOR T.O. SLAB 0 SECOND FLOOR T.O. SLAB 4000 G PARAPET 2ND FLOOR 4500 ???? BASEMENT T.O. SLAB -2200 ???? W2 P1 FD1 FD1 1.9% BOILER+ELEV MACH. (BASEMENT) BOILER + ELEV MACH EXTERIOR R3 1 A604 W2 2 A604 SCALECHECKED BY DATE PROJECT Nº DRAWN BY 3/9/20163:11:23PM 1 : 25 TYPICAL WALL SECTIONS CDELEMENTARY SCHOOL "SIMON RODRIGUEZ" MARCH 29TH,2016 PATRICK KUSMIDER A501CARLOS RADIC BIAZIK50 UPPER ROUGE TRAIL, SCARBOROUGH, ON M1B 6K4 1 : 25 WALL SECTION 1 1 1 : 25 WALL SECTION 2 2 1 : 25 WALL SECTION 3 3 1 : 25 WALL SECTION 4 4
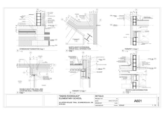
  • 6.
    4 5 6 F 11 49 344 393 12961190 ENTRANCE 101 EXTERIOR GYMNASIUM 102 190mm CMU190mmCMU ? ? 25mm AIR SPACE W4 145 WRB 398 90mm CLAY BRICK 5mm DOUBLE PANEL GLASS AND LOW-E COATING STOREFRONT JAMB AT FINISH - DOUBLE GLAZED W1 W5 W2 443 61179203 97 METAL FLASHING SILICONE CAULKINGSILICONE CAULKING GROUND FLOOR T.O. SLAB 0 FOOTINGS B.O. FOUND W. -1500 T.O. Footing -1800 12 150 3.3% 901 61 179 203 456 GYMNASIUM EXTERIOR 90mm CLAY BRICK 25mm AIR SPACE 75mm RIGID INSULATION WRB 240mm CMU1005020015 RUBBER/VYNIL COVER BASE TERRAZO FLOORING CONCRETE 75mm RIGID INSULATION EXPANSION JOINT FILLER METAL FLASHING BRICK VENT @ 600 mm CEMENT SETTING BED 50mm (2")RIGID INSULATION DAMPPROOFING G 9 6' BOILER+ELEV MACH. (BASEMENT) 125 393 EXTERIOR W2 W2 W5 393 145.00° 90mm CLAY BRICK 25mm AIR SPACE 190mm CMU 190 203 203 190 CORRIDOR FOUNDATION BELOW 12 ROOF T.O. SLAB/DECK 8000 PARAPET ROOF 8500 CRUSHED STONE/GRAVEL EPDM ROOF MEMBRANE BITUMEN ROOF CAP PROTECTOR BOARD 75mm RIGID INSULATION 38mm STEEL DECK PRECAST CONCRETE CAP 90mm CLAY BRICK 25mm AIR SPACE WRB 41 179 215 435 600 204 150mm (6") METAL STUD FRAMING H ROOF T.O. SLAB/DECK 8000 PARAPET ROOF 8500 SQUARE EDGE (3/4 X 12 X 18) DUCTS CORRIDOR EXTERIOR 600 223 ALUMINUM PANEL 25mm AIR SPACE 75mm RIGID INSULATION BITUMEN ROOF CAP EPDM ROOF MEMBRANE BONDED GLASS FIBER BOARDWRB HOLLOW-CORE CONCRETE SLAB 190mm CMU 127 187 34 347 SECOND FLOOR T.O. SLAB 4000 H PARAPET 2ND FLOOR 4500 DUCTS 127 187 314 162350 512 65350 415 ALUMINUM PANEL 75mm RIGID INSULATION 190mm CMU 25mm AIR SPACE COVE TRIM TERRAZO FLOORING PRECAST CONCRETE CAP HOLLOW-CORE CONCRETE SLAB HOLLOW-CORE CONCRETE SLAB EPDM ROOF MEMBRANE BONDED GLASS FIBER BOARD 75mm RIGID INSULATION WRB 635 12mm GYP BD BULK HEAD SPRAY FIREPROOFING ON STRUCT. STEEL MEMBERS 67 414 SQUARE EDGE (3/4 X 12 X 18) SCALECHECKED BY DATE PROJECT Nº DRAWN BY 3/9/20163:11:23PM 1 : 10 DETAILS CDELEMENTARY SCHOOL "SIMON RODRIGUEZ" MARCH 29TH,2016 Checker A601Author50 UPPER ROUGE TRAIL, SCARBOROUGH, ON M1B 6K4 1 : 10 DOUBLE HIGHT CMU WALL AND COURTAIN WALL ITERSECTION Copy 12 1 : 10 GYMNASIUM FOUNDATION Copy 1 3 1 : 10 NORTH-WEST EXTERIOR/IN- TERIOR WALL INTERSECTION Copy 14 1 : 10 PARAPET 2 Copy 1 5 1 : 10 PARAPET 3 Copy 1 6 1 : 10 ROOF/FLOOR INTERSECTION Copy 1 7