Project Report of
COMMERCIAL SPACES
Submitted to
Dezyne E’cole College
By
Ms. Rubina D’souza
Towards the completion of 3 years of
Program of BS.c. I.D.
DEZYNE E’COLE COLLEGE
DEZYNE E’COLE COLLEGE
The project of Ms. Rubina D’souza has been checked and
every aspect of design developed was seen and the overall
grade is
_______________________________________________________
_______________________________________________________
Place: _______________________________Sign: _______________________________
Date: _______________________________
Name:
______________________________
ACKNOWLEDGMENT
Commercial design project has been compiled seeing the growing need of the
commercial design field in India.
I thank DEZYNE E’COLE for giving me the opportunity to do this project and help
me to consider on various aspects of commercial design.
I thank Mrs. VINITA MATHUR for guiding me on the various design parameters
With due regards
The points to be considered in this category are:-
Brief of the client and design and structure of restaurant
Concept behind design –Chinese architecture, looks of the restaurant
3d of restaurant
Working drawing –plan, sections, views of restaurant
Materials and textures used
Design brief
This project of the restaurant is located inside the premise of a hotel chain and this restaurant caters to Chinese food
especially from Thai region. This restaurant is made on water body and the architecture followed is the Chinese
architecture; as the Chinese architecture has more of usage of wood, the concept behind designing this restaurant is taken
from Chinese architecture. The concept behind designing this restaurant with wood is only because wood gives a warm
feeling and since restaurant is open from all the sides it gives an airy feeling. The water body beneath gives a freshness
feeling with the flora and fauna planted around the restaurant. The colors used are warm and derived from Chinese
architecture
In this restaurant the furniture and the whole layout has been done keeping into mind the human space needed
with the oriental look.
Concept behind restaurant design is Chinese architecture
Chinese architecture refers to a style of architecture that has taken shape in East Asia over many centuries. The
structural principles of Chinese architecture have remained largely unchanged, the main changes being only the
decorative details. Since the Tang Dynasty, Chinese architecture has had a major influence on the architectural styles
of Korea, Vietnam, and Japan. The architecture of China is as old as Chinese civilization. It dated from over 2000
years ago.
Famous architecture of china is:
Great Wall of China; Temples; Roofs; Forbidden city
Main features of Chinese architecture
Phoenix has been used for decorative as well as economic purposes.
It emphasis on width, as the wide halls of Forbidden City. Whereas western architecture emphasizes on height,
such as pagodas.
Main principle is balance and symmetry. Symmetry gives a sense of grandeur.
Feng shui plays important part in structural development
Tetragonal shape temples were made
Cities were surrounded by high walls to protect
Temple roofs are curved because Buddhist believe that it helped ward off evils spirits which were believed to be
of straight lines
Temple roof is made of glazed ceramic tiles
Forbidden palace roof has yellow, green and red tiles
Ridges of each roof carries figurines or mythical creatures
Most intricate designs of the roofs are almost always pointing towards south- east
Temple of heaven use blue roof tiles to symbolizes the sky.
Wooden columns and surface of walls, tends to be red in colour
Chinese dragon reserved for imperial regime was heavily used on imperial architecture on roofs, beams, pillars
and on door.
Ancient Chinese favored red colour
The buildings faced south side
In Chinese architecture wooden framed houses are joined by mortise and tenon joinery
Buildings shapes are circular, square, and oblong
Simple ceiling ornamentation in ordinary building were made of wooden strips and covered with paper
Dougong are used for interlocking wooden brackets and are of latticework, mud and delicate material.
Elegant profile and varied structure
Chinese architecture focuses on : Colors, decorations, furnishings, carved beams, painted raftersetc
Stone lions, screen walls, ornamental columns as well as flowers are used in the outside of building to make
ornaments
Yellow, red, green are lucky colors : yellow symbolizes royalty and power, red is Chinese national colour and
represents happiness, green symbolizes money
Tortoise together with, dragon, phoenix, and unicorn is considered to be the four auspicious beasts
Concept board
Famous Motifs of Chinese architecture are:
Ruyi motif
lucky cloud motif
Double happiness motif
Bamboo motif
Dragon and phoenix motif
Motif board
All these arts and features of Chinese architecture attracted me for my restaurant project but seeing the practical
world and the facilities available in Ajmer I have transformed these Chinese elements according to materials
available at present time
Studying all the aspects of Chinese architecture I came up a structure for restaurant which
is square in shape and has thatched roof. This restaurant clientele is of elite order and has high working profiles. They can
spent lavishly, but needs a good ambience along with food and for that I came up with this structure.
3d view of restaurant
Sectional 3d of restaurant
Structural plan of restaurant
Sectional elevation of restaurant
Foundation plan and elevation of restaurant
For furniture plan I have come up with these three layout, among these I
have selected the last one because I found this layout to be more well
planned and in it more than 40 covers can be seated along with efficient
aisle space and a bar area with side itazers
Furniture plan of restaurant
Thatched roof structure of restaurant
Restaurant pillar design
Material board
Chair design
Bar stool design
will have this type
of seat and apron
design with legs to
be of different
style
Itazers design
etail design is a very specialized discipline due to the heavy demands placed on retail space. Because the primary
purpose of retail space is to stock and sell product to consumers, the spaces must be designed in a way that
promotes an enjoyable and hassle-free shopping experience for the consumer. The space must be specially-
tailored to the kind of product being sold in that space;
The points to be considered in this category are:-
Brief of the client and design and structure of restaurant
Concept behind design –Chinese architecture, looks of the restaurant
3d of restaurant
Working drawing –plan, sections, views of restaurant
Materials and textures used
Design brief
My client belongs to an elite group, which prefers choice over money. The clientele for this retail outlet involves women
crowd, store comprises of women apparels and accessories. These customers have high income group and are very
sophisticated. They have high taste and aesthetic and prefer good space and aura for their shopping spaces which can
show their prestige and compliment their personality.
Project write-up
This store comprises of classical Indian traditional dresses designed by tarun tahiliani situated at borivalli in
Mumbai. Where each and every piece of apparel and accessory is a unique and exceptional thing which has to be
displayed properly.
Concept behind retail space
There was a need of my client for a store which has an ambience that can relax the stress of customers along with
boosting their buying interest.
And for that I have given them a change from all contemporary and sleek spaces by choosing tribal art as my
concept and from that the Gaddi tribes of himachal pradesh to be my theme to design the space.
R
The Gaddis are shepherds who move their flocks of sheep from lower pastures in winter to higher ones after snow melt.
Interestingly, the Gaddis are only found scattered around the Dhauladhars. They call this area Gadheran or 'the land of the
Gaddis'. To them the Dhauladhars are not just a mountain range but like their mother.
ABOUT GADDIES
the Gaddis move freely between Chamba and Kangra when the passes of the Dhauladhars allow them to do so. In winter
they move down south and can be seen around Kangra, Mandi and Bilaspur and in the small villages between Baijnath
and Palampur. Marriages between people living on opposite sides of the Dhauladhars are common. Gaddis of Himachal
Pradesh are world famous
3D OF RETAIL
Structural plan of retail
Floor plan of retail
Furniture plan of retail
Orthographic views of
cloth display wall
Material board
Sicis mosaic tile on
fountain at the back with
brand name written over it
with brushed steel
Hangers on the show
window
Secondary furniture
Shop name will be written
in this way
Hanger design
Dummy design
Jewellery table
design
Pillar design
Show window material
OFFICE DESIGN
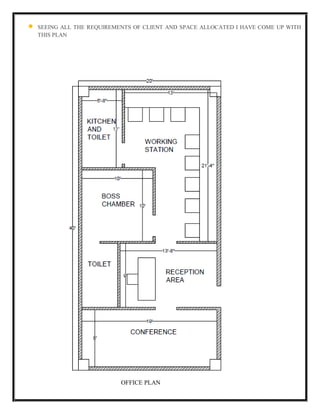
MY CLIENT FOR OFFICE DESIGN HAS A SMALL SPACE OF 20’X 40’ AND WANTS A SPACE TO BE
WELLTPLANNED AND EQUIPPED AND FOR THAT I SELECTED CONTEMPORARY SYLE.
I HAVE DESIGNED SOME WORK STATIONS WHICH ARE AS PER STANDARDS BUT I HAVE TO FIT
THEM IN MY GIVEN SPACE
SEEING ALL THE REQUIREMENTS OF CLIENT AND SPACE ALLOCATED I HAVE COME UP WITH
THIS PLAN
OFFICE PLAN
Rubina commercial projects
Rubina commercial projects
Rubina commercial projects
Rubina commercial projects
Rubina commercial projects
Rubina commercial projects
Rubina commercial projects
Rubina commercial projects
Rubina commercial projects
Rubina commercial projects
Rubina commercial projects
Rubina commercial projects
Rubina commercial projects
Rubina commercial projects
Rubina commercial projects
Rubina commercial projects
Rubina commercial projects
Rubina commercial projects
Rubina commercial projects
Rubina commercial projects
Rubina commercial projects
Rubina commercial projects
Rubina commercial projects
Rubina commercial projects
Rubina commercial projects
Rubina commercial projects
Rubina commercial projects
Rubina commercial projects
Rubina commercial projects
Rubina commercial projects
Rubina commercial projects
Rubina commercial projects
Rubina commercial projects
Rubina commercial projects
Rubina commercial projects
Rubina commercial projects
Rubina commercial projects
Rubina commercial projects
Rubina commercial projects
Rubina commercial projects
Rubina commercial projects
Rubina commercial projects
Rubina commercial projects
Rubina commercial projects
Rubina commercial projects
Rubina commercial projects
Rubina commercial projects
Rubina commercial projects
Rubina commercial projects
Rubina commercial projects
Rubina commercial projects
Rubina commercial projects
Rubina commercial projects
Rubina commercial projects
Rubina commercial projects
Rubina commercial projects
Rubina commercial projects
Rubina commercial projects
Rubina commercial projects
Rubina commercial projects
Rubina commercial projects
Rubina commercial projects
Rubina commercial projects
Rubina commercial projects
Rubina commercial projects
Rubina commercial projects
Rubina commercial projects

Rubina commercial projects

  • 1.
    Project Report of COMMERCIALSPACES Submitted to Dezyne E’cole College By Ms. Rubina D’souza Towards the completion of 3 years of Program of BS.c. I.D. DEZYNE E’COLE COLLEGE
  • 2.
    DEZYNE E’COLE COLLEGE Theproject of Ms. Rubina D’souza has been checked and every aspect of design developed was seen and the overall grade is _______________________________________________________ _______________________________________________________ Place: _______________________________Sign: _______________________________ Date: _______________________________ Name: ______________________________
  • 3.
    ACKNOWLEDGMENT Commercial design projecthas been compiled seeing the growing need of the commercial design field in India. I thank DEZYNE E’COLE for giving me the opportunity to do this project and help me to consider on various aspects of commercial design. I thank Mrs. VINITA MATHUR for guiding me on the various design parameters With due regards
  • 5.
    The points tobe considered in this category are:- Brief of the client and design and structure of restaurant Concept behind design –Chinese architecture, looks of the restaurant 3d of restaurant Working drawing –plan, sections, views of restaurant Materials and textures used Design brief This project of the restaurant is located inside the premise of a hotel chain and this restaurant caters to Chinese food especially from Thai region. This restaurant is made on water body and the architecture followed is the Chinese architecture; as the Chinese architecture has more of usage of wood, the concept behind designing this restaurant is taken from Chinese architecture. The concept behind designing this restaurant with wood is only because wood gives a warm feeling and since restaurant is open from all the sides it gives an airy feeling. The water body beneath gives a freshness feeling with the flora and fauna planted around the restaurant. The colors used are warm and derived from Chinese architecture In this restaurant the furniture and the whole layout has been done keeping into mind the human space needed with the oriental look. Concept behind restaurant design is Chinese architecture Chinese architecture refers to a style of architecture that has taken shape in East Asia over many centuries. The structural principles of Chinese architecture have remained largely unchanged, the main changes being only the decorative details. Since the Tang Dynasty, Chinese architecture has had a major influence on the architectural styles of Korea, Vietnam, and Japan. The architecture of China is as old as Chinese civilization. It dated from over 2000 years ago. Famous architecture of china is: Great Wall of China; Temples; Roofs; Forbidden city Main features of Chinese architecture Phoenix has been used for decorative as well as economic purposes.
  • 6.
    It emphasis onwidth, as the wide halls of Forbidden City. Whereas western architecture emphasizes on height, such as pagodas. Main principle is balance and symmetry. Symmetry gives a sense of grandeur. Feng shui plays important part in structural development Tetragonal shape temples were made Cities were surrounded by high walls to protect Temple roofs are curved because Buddhist believe that it helped ward off evils spirits which were believed to be of straight lines Temple roof is made of glazed ceramic tiles Forbidden palace roof has yellow, green and red tiles Ridges of each roof carries figurines or mythical creatures Most intricate designs of the roofs are almost always pointing towards south- east Temple of heaven use blue roof tiles to symbolizes the sky. Wooden columns and surface of walls, tends to be red in colour Chinese dragon reserved for imperial regime was heavily used on imperial architecture on roofs, beams, pillars and on door. Ancient Chinese favored red colour The buildings faced south side In Chinese architecture wooden framed houses are joined by mortise and tenon joinery Buildings shapes are circular, square, and oblong Simple ceiling ornamentation in ordinary building were made of wooden strips and covered with paper Dougong are used for interlocking wooden brackets and are of latticework, mud and delicate material. Elegant profile and varied structure Chinese architecture focuses on : Colors, decorations, furnishings, carved beams, painted raftersetc Stone lions, screen walls, ornamental columns as well as flowers are used in the outside of building to make ornaments Yellow, red, green are lucky colors : yellow symbolizes royalty and power, red is Chinese national colour and represents happiness, green symbolizes money Tortoise together with, dragon, phoenix, and unicorn is considered to be the four auspicious beasts
  • 7.
    Concept board Famous Motifsof Chinese architecture are: Ruyi motif lucky cloud motif Double happiness motif Bamboo motif Dragon and phoenix motif
  • 8.
    Motif board All thesearts and features of Chinese architecture attracted me for my restaurant project but seeing the practical world and the facilities available in Ajmer I have transformed these Chinese elements according to materials available at present time
  • 9.
    Studying all theaspects of Chinese architecture I came up a structure for restaurant which is square in shape and has thatched roof. This restaurant clientele is of elite order and has high working profiles. They can spent lavishly, but needs a good ambience along with food and for that I came up with this structure. 3d view of restaurant
  • 10.
    Sectional 3d ofrestaurant
  • 11.
    Structural plan ofrestaurant Sectional elevation of restaurant
  • 12.
    Foundation plan andelevation of restaurant
  • 13.
    For furniture planI have come up with these three layout, among these I have selected the last one because I found this layout to be more well planned and in it more than 40 covers can be seated along with efficient aisle space and a bar area with side itazers Furniture plan of restaurant
  • 14.
  • 15.
  • 16.
    Material board Chair design Barstool design will have this type of seat and apron design with legs to be of different style Itazers design
  • 18.
    etail design isa very specialized discipline due to the heavy demands placed on retail space. Because the primary purpose of retail space is to stock and sell product to consumers, the spaces must be designed in a way that promotes an enjoyable and hassle-free shopping experience for the consumer. The space must be specially- tailored to the kind of product being sold in that space; The points to be considered in this category are:- Brief of the client and design and structure of restaurant Concept behind design –Chinese architecture, looks of the restaurant 3d of restaurant Working drawing –plan, sections, views of restaurant Materials and textures used Design brief My client belongs to an elite group, which prefers choice over money. The clientele for this retail outlet involves women crowd, store comprises of women apparels and accessories. These customers have high income group and are very sophisticated. They have high taste and aesthetic and prefer good space and aura for their shopping spaces which can show their prestige and compliment their personality. Project write-up This store comprises of classical Indian traditional dresses designed by tarun tahiliani situated at borivalli in Mumbai. Where each and every piece of apparel and accessory is a unique and exceptional thing which has to be displayed properly. Concept behind retail space There was a need of my client for a store which has an ambience that can relax the stress of customers along with boosting their buying interest. And for that I have given them a change from all contemporary and sleek spaces by choosing tribal art as my concept and from that the Gaddi tribes of himachal pradesh to be my theme to design the space. R
  • 19.
    The Gaddis areshepherds who move their flocks of sheep from lower pastures in winter to higher ones after snow melt. Interestingly, the Gaddis are only found scattered around the Dhauladhars. They call this area Gadheran or 'the land of the Gaddis'. To them the Dhauladhars are not just a mountain range but like their mother. ABOUT GADDIES the Gaddis move freely between Chamba and Kangra when the passes of the Dhauladhars allow them to do so. In winter they move down south and can be seen around Kangra, Mandi and Bilaspur and in the small villages between Baijnath and Palampur. Marriages between people living on opposite sides of the Dhauladhars are common. Gaddis of Himachal Pradesh are world famous
  • 20.
  • 21.
    Structural plan ofretail Floor plan of retail
  • 22.
  • 23.
  • 25.
    Material board Sicis mosaictile on fountain at the back with brand name written over it with brushed steel Hangers on the show window Secondary furniture Shop name will be written in this way Hanger design Dummy design Jewellery table design Pillar design Show window material
  • 27.
    OFFICE DESIGN MY CLIENTFOR OFFICE DESIGN HAS A SMALL SPACE OF 20’X 40’ AND WANTS A SPACE TO BE WELLTPLANNED AND EQUIPPED AND FOR THAT I SELECTED CONTEMPORARY SYLE. I HAVE DESIGNED SOME WORK STATIONS WHICH ARE AS PER STANDARDS BUT I HAVE TO FIT THEM IN MY GIVEN SPACE
  • 28.
    SEEING ALL THEREQUIREMENTS OF CLIENT AND SPACE ALLOCATED I HAVE COME UP WITH THIS PLAN OFFICE PLAN