El Pueblo Ribera Court L O C A T I O N : L A J O L L A, C A L I F O R N I A A R C H I T E C T : R. M. S C H I N D L E R Y E A R : 1 9 2 3 - 1 9 2 5 
El Pueblo Ribera Court was a multi-dwelling complex, designed by 
Rudolph Schindler as 12 individual units to be rented out as vacation 
homes in the 1920’s. Schindler argued there should be no separation 
between the interior and exterior environment. In Pueblo Ribera it is clear 
to see the integration of environment and architecture. The roof terraces 
were covered with a suspended trellis; it’s accessed by an outdoor 
stairway and was meant to be used as a living and sleeping space and for 
viewing the ocean. 
The units of the Pueblo Ribera were composed through hierarchical 
circulation diagrams, the main objective was to have the most privacy 
between the units. The units all include a private outdoor patio/ garden 
space. The first concept for the Pueblo Ribera is the creation and 
composition of the units through hierarchical circulation diagrams. Each 
unit has a main central area with two lateral masses on either end. The 
stairs are outdoors suggesting south western influences from pueblos 
occupied by Native Americans such as the Sinagua tribe; In the same 
manner that these villages had their ladders on the outside connecting 
rooms the Pueblo Ribera circulation mimics this gesture. Another concept 
was to design a unit with the most privacy and still have great views. Each 
unit is U-shaped with a roof terrace, which provides the most privacy and 
still offers views to the ocean. Because of the topography, the roof 
terraces don’t get in the way of each other. 
The final concept for the Pueblo Ribera is the application of the 
architecture as landscape and the integration between site and structure. 
The architectural gestures and materials applied compliment each others 
tonality of site and structure. The complex nestles into the topography 
and the as already stated, each unit has a private garden and consisted of 
suspended trellises which further help in blending with the landscape. The 
materials that were applied in these units were concrete, (local sand for 
some aggregate), redwood and glass.
H 
B 
C 
Puebla Ribera 
C O N C E P T S 
H 
UNIT COMPOSITION PRIVACY VIEWS / PRIVACY ARCHITECTURE & LAND INTEGRATION 
S I T E T O P O G R A P H Y 
Major Walls and Slabs 
Structural Elements 
Private Spaces 
H 
A 
B 
C 
D 
E F 
G 
Trellis. The major beams are 2 x 8 
redwood; the smaller ones are 2x 4 redwood. 
Railing of 1” redwood boards. 
Floor construction: 2” concrete slab on wire-mesh 
composition roof and Celotex, resting on 
3 x 8 redwood joists spaced at 24” on center. 
Glass set between 2 x 14 redwood beams. 
This supports the joists above the spans 
between concrete walls. 
3 x 8 redwood fascia. 
Construction of low roof: composition roof on 
1” boards supported by 2x 4 redwood beams 
24” on center. 
Sliding wood-and-glass door. 
Cast-in-place concrete wall. This was built 
using slab-cast system. 
A 
B 
C 
D 
E 
F 
G 
H 
A 
B 
C 
D 
E F 
G 
Trellis. The major beams are 2 x 8 
redwood; the smaller ones are 2x 4 redwood. 
Railing of 1” redwood boards. 
Floor construction: 2” concrete slab on wire-mesh 
composition roof and Celotex, resting on 
3 x 8 redwood joists spaced at 24” on center. 
Glass set between 2 x 14 redwood beams. 
This supports the joists above the spans 
between concrete walls. 
3 x 8 redwood fascia. 
Construction of low roof: composition roof on 
1” boards supported by 2x 4 redwood beams 
24” on center. 
Sliding wood-and-glass door. 
Cast-in-place concrete wall. This was built 
using slab-cast system. 
A 
B 
C 
D 
E 
F 
G 
H 
A 
B 
C 
D 
E F 
G 
redwood; the smaller ones are 2x 4 redwood. 
Railing of 1” redwood boards. 
Floor construction: 2” concrete slab on wire-mesh 
composition roof and Celotex, resting on 
3 x 8 redwood joists spaced at 24” on center. 
Glass D 
set between 2 x 14 redwood beams. 
This supports the joists above the spans 
between concrete walls. 
3 x 8 E 
redwood fascia. 
Construction F 
of low roof: composition roof on 
1” boards supported by 2x 4 redwood beams 
24” on center. 
Sliding wood-and-glass door. 
Cast-in-place concrete wall. This was built 
using slab-cast system. 
G 
H 
H 
A 
B 
C 
D 
E F 
G 
Trellis. The major beams are 2 x 8 
redwood; the smaller ones are 2x 4 redwood. 
Railing of 1” redwood boards. 
Floor construction: 2” concrete slab on wire-mesh 
composition roof and Celotex, resting on 
3 x 8 redwood joists spaced at 24” on center. 
Glass set between 2 x 14 redwood beams. 
This supports the joists above the spans 
between concrete walls. 
3 x 8 redwood fascia. 
Construction of low roof: composition roof on 
1” boards supported by 2x 4 redwood beams 
24” on center. 
Sliding wood-and-glass door. 
Cast-in-place concrete wall. This was built 
using slab-cast system. 
A 
B 
C 
D 
E 
F 
G 
H 
GRAVILLA ST. 
VISTA DEL MAR AVE. 
D E T A I L & M A T E R I A L 
VIEWS
U N I T C O N F I G U R A T I O N I 
FACING WEST 
U N I T C O N F I G U R A T I O N I I 
FACING SOUTH 
U N I T C O N F I G U R A T I O N I I I 
FACING EAST 
U N I T C O N F I G U R A T I O N I V 
FACING NORTH 
1 
2 
3 
4 
5 6 
(6) 2 U N I T Z O N E S 
FACING EAST S I T E C I R C U L A T I O N 
P U B L I C S P A C E 
P R I V A T E S P A C E
Puebla Ribera 
RM-3-7 permits a maximum density of 1 dwelling unit for each 
1,000 square feet of lot area 
P R I V A T E S P A C E S 
ROOFTOP TERRACE AND PATIO V I E W S G E O M E T R Y 
M A T E R I A L E N C L O S U R E [ P E R I M E T E R ] 
2ND LEVEL 
GROUND LEVEL 
C O N C R E T E S LA B S 
S T R U C T U R E 
ROOF TERRACE 
2ND FLOOR 
GROUND FLOOR
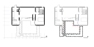
G R O U N D F L O O R P L A N P R I V A T E S P A C E S 
FRONT LAWN GARDEN
Puebla Ribera 
P R O G R A M 
Second Floor 
Porch 
Kitchen 
Nook 
Living Room 
Closet 
Bathroom 
Bedroom 
Closet 
Living Space 
Roof Terrace 
Patio 
First Floor 
S C A L E 
VICINITY MAP 
0 10’ 
C O M P O S I T I O N P R I V A T E I N D O O R 
P R I V A T E O U T D O O R 
V I E W S 
ORENTATION AND BOUNDARIES
Puebla Ribera 
L E V E L IV 
L E V E L III 
L E V E L II 
L E V E L I 
"The sense for the perception of architecture is not the eyes—but living. Our life is its image." 
— Rudolph M. Schindler 
"Throughout the twenties Schindler continued to experiment with concrete. After 
using tilt-slab construction in the King's Road house, in 1923 he tried out concrete 
poured in movable forms for an inexpensive garden court, the 12-unit Pueblo Ribera 
Courts in La Jolla....Excellent plot plan arranged the units so that the masonry walls 
of one served as garden enclosure for another...Schindler did not approach a 
minimum house from the point of view of how much could be left out; he exercised 
the strictest economy on structure so that he could indulge in what he considered 
the vital luxuries of life. Here the luxuries were three different types of living areas: 
indoors, enclosed court and roof terrace, each communicating naturally with the 
others. 
In the lift-form concrete system he achieved an organic whole out of an aggregation 
of small units. The form work was both ingenious and simple." 
— Esther McCoy. Five California Architects. p161-163.

Pueblo ribera.ai

  • 1.
    El Pueblo RiberaCourt L O C A T I O N : L A J O L L A, C A L I F O R N I A A R C H I T E C T : R. M. S C H I N D L E R Y E A R : 1 9 2 3 - 1 9 2 5 El Pueblo Ribera Court was a multi-dwelling complex, designed by Rudolph Schindler as 12 individual units to be rented out as vacation homes in the 1920’s. Schindler argued there should be no separation between the interior and exterior environment. In Pueblo Ribera it is clear to see the integration of environment and architecture. The roof terraces were covered with a suspended trellis; it’s accessed by an outdoor stairway and was meant to be used as a living and sleeping space and for viewing the ocean. The units of the Pueblo Ribera were composed through hierarchical circulation diagrams, the main objective was to have the most privacy between the units. The units all include a private outdoor patio/ garden space. The first concept for the Pueblo Ribera is the creation and composition of the units through hierarchical circulation diagrams. Each unit has a main central area with two lateral masses on either end. The stairs are outdoors suggesting south western influences from pueblos occupied by Native Americans such as the Sinagua tribe; In the same manner that these villages had their ladders on the outside connecting rooms the Pueblo Ribera circulation mimics this gesture. Another concept was to design a unit with the most privacy and still have great views. Each unit is U-shaped with a roof terrace, which provides the most privacy and still offers views to the ocean. Because of the topography, the roof terraces don’t get in the way of each other. The final concept for the Pueblo Ribera is the application of the architecture as landscape and the integration between site and structure. The architectural gestures and materials applied compliment each others tonality of site and structure. The complex nestles into the topography and the as already stated, each unit has a private garden and consisted of suspended trellises which further help in blending with the landscape. The materials that were applied in these units were concrete, (local sand for some aggregate), redwood and glass.
  • 2.
    H B C Puebla Ribera C O N C E P T S H UNIT COMPOSITION PRIVACY VIEWS / PRIVACY ARCHITECTURE & LAND INTEGRATION S I T E T O P O G R A P H Y Major Walls and Slabs Structural Elements Private Spaces H A B C D E F G Trellis. The major beams are 2 x 8 redwood; the smaller ones are 2x 4 redwood. Railing of 1” redwood boards. Floor construction: 2” concrete slab on wire-mesh composition roof and Celotex, resting on 3 x 8 redwood joists spaced at 24” on center. Glass set between 2 x 14 redwood beams. This supports the joists above the spans between concrete walls. 3 x 8 redwood fascia. Construction of low roof: composition roof on 1” boards supported by 2x 4 redwood beams 24” on center. Sliding wood-and-glass door. Cast-in-place concrete wall. This was built using slab-cast system. A B C D E F G H A B C D E F G Trellis. The major beams are 2 x 8 redwood; the smaller ones are 2x 4 redwood. Railing of 1” redwood boards. Floor construction: 2” concrete slab on wire-mesh composition roof and Celotex, resting on 3 x 8 redwood joists spaced at 24” on center. Glass set between 2 x 14 redwood beams. This supports the joists above the spans between concrete walls. 3 x 8 redwood fascia. Construction of low roof: composition roof on 1” boards supported by 2x 4 redwood beams 24” on center. Sliding wood-and-glass door. Cast-in-place concrete wall. This was built using slab-cast system. A B C D E F G H A B C D E F G redwood; the smaller ones are 2x 4 redwood. Railing of 1” redwood boards. Floor construction: 2” concrete slab on wire-mesh composition roof and Celotex, resting on 3 x 8 redwood joists spaced at 24” on center. Glass D set between 2 x 14 redwood beams. This supports the joists above the spans between concrete walls. 3 x 8 E redwood fascia. Construction F of low roof: composition roof on 1” boards supported by 2x 4 redwood beams 24” on center. Sliding wood-and-glass door. Cast-in-place concrete wall. This was built using slab-cast system. G H H A B C D E F G Trellis. The major beams are 2 x 8 redwood; the smaller ones are 2x 4 redwood. Railing of 1” redwood boards. Floor construction: 2” concrete slab on wire-mesh composition roof and Celotex, resting on 3 x 8 redwood joists spaced at 24” on center. Glass set between 2 x 14 redwood beams. This supports the joists above the spans between concrete walls. 3 x 8 redwood fascia. Construction of low roof: composition roof on 1” boards supported by 2x 4 redwood beams 24” on center. Sliding wood-and-glass door. Cast-in-place concrete wall. This was built using slab-cast system. A B C D E F G H GRAVILLA ST. VISTA DEL MAR AVE. D E T A I L & M A T E R I A L VIEWS
  • 3.
    U N IT C O N F I G U R A T I O N I FACING WEST U N I T C O N F I G U R A T I O N I I FACING SOUTH U N I T C O N F I G U R A T I O N I I I FACING EAST U N I T C O N F I G U R A T I O N I V FACING NORTH 1 2 3 4 5 6 (6) 2 U N I T Z O N E S FACING EAST S I T E C I R C U L A T I O N P U B L I C S P A C E P R I V A T E S P A C E
  • 4.
    Puebla Ribera RM-3-7permits a maximum density of 1 dwelling unit for each 1,000 square feet of lot area P R I V A T E S P A C E S ROOFTOP TERRACE AND PATIO V I E W S G E O M E T R Y M A T E R I A L E N C L O S U R E [ P E R I M E T E R ] 2ND LEVEL GROUND LEVEL C O N C R E T E S LA B S S T R U C T U R E ROOF TERRACE 2ND FLOOR GROUND FLOOR
  • 5.
    G R OU N D F L O O R P L A N P R I V A T E S P A C E S FRONT LAWN GARDEN
  • 6.
    Puebla Ribera PR O G R A M Second Floor Porch Kitchen Nook Living Room Closet Bathroom Bedroom Closet Living Space Roof Terrace Patio First Floor S C A L E VICINITY MAP 0 10’ C O M P O S I T I O N P R I V A T E I N D O O R P R I V A T E O U T D O O R V I E W S ORENTATION AND BOUNDARIES
  • 8.
    Puebla Ribera LE V E L IV L E V E L III L E V E L II L E V E L I "The sense for the perception of architecture is not the eyes—but living. Our life is its image." — Rudolph M. Schindler "Throughout the twenties Schindler continued to experiment with concrete. After using tilt-slab construction in the King's Road house, in 1923 he tried out concrete poured in movable forms for an inexpensive garden court, the 12-unit Pueblo Ribera Courts in La Jolla....Excellent plot plan arranged the units so that the masonry walls of one served as garden enclosure for another...Schindler did not approach a minimum house from the point of view of how much could be left out; he exercised the strictest economy on structure so that he could indulge in what he considered the vital luxuries of life. Here the luxuries were three different types of living areas: indoors, enclosed court and roof terrace, each communicating naturally with the others. In the lift-form concrete system he achieved an organic whole out of an aggregation of small units. The form work was both ingenious and simple." — Esther McCoy. Five California Architects. p161-163.