AIR CONDITIONING SYSTEMS
PEFY-M-VMA(L)-A
MODEL
PEFY-M-VMA(L)-A
MEES21K075 1
CONTENTS Ceiling concealed (Medium static pressure type)
I.Ceiling concealed (Medium static pressure type)
1. SPECIFICATIONS.................................................................................................................................... 2
2. EXTERNAL DIMENSIONS ....................................................................................................................... 8
3. CENTER OF GRAVITY ............................................................................................................................ 16
4. ELECTRICAL WIRING DIAGRAMS ......................................................................................................... 17
5. SOUND LEVELS ...................................................................................................................................... 18
5-1. Sound levels .................................................................................................................................... 18
5-2. NC curves ........................................................................................................................................ 19
6. FAN CHARACTERISTICS CURVES........................................................................................................ 23
7. CAPACITY TABLES ................................................................................................................................. 32
7-1. Correction by fan speed................................................................................................................... 32
8. ELECTRICAL CHARACTERISTICS......................................................................................................... 33
9. OPTIONAL PARTS................................................................................................................................... 34
9-1. Optional parts line up for the Indoor unit.......................................................................................... 34
9-2. Filter box .......................................................................................................................................... 34
9-3. Plasma Quad Connect..................................................................................................................... 35
0000006347.BOOK 1 ページ 2021年7月13日 火曜日 午前9時52分
MEES21K075
PEFY-M-VMA(L)-A
2
1. SPECIFICATIONS Ceiling concealed (Medium static pressure type)
I.Ceiling concealed (Medium static pressure type)
1. SPECIFICATIONS
Model PEFY-M20VMA-A PEFY-M25VMA-A PEFY-M32VMA-A PEFY-M40VMA-A
Power source 1-phase 220-230-240 V 50 Hz 1-phase 220-230-240 V 50 Hz 1-phase 220-230-240 V 50 Hz 1-phase 220-230-240 V 50 Hz
Cooling capacity *1 kW 2.2 2.8 3.6 4.5
(Nominal) *1 BTU/h 7,500 9,600 12,300 15,400
*2 Power input kW 0.032 0.032 0.044 0.047
*2 Current input A 0.26-0.25-0.24 0.26-0.25-0.24 0.36-0.34-0.33 0.39-0.37-0.36
Heating capacity *3 kW 2.5 3.2 4.0 5.0
(Nominal) *3 BTU/h 8,500 10,900 13,600 17,100
*2 Power input kW 0.030 0.030 0.042 0.045
*2 Current input A 0.26-0.25-0.24 0.26-0.25-0.24 0.36-0.34-0.33 0.39-0.37-0.36
External finish Galvanized steel plate Galvanized steel plate Galvanized steel plate Galvanized steel plate
External dimension H x W x D mm 250 x 700 x 732 250 x 700 x 732 250 x 700 x 732 250 x 900 x 732
in. 9-7/8 x 27-9/16 x 28-7/8 9-7/8 x 27-9/16 x 28-7/8 9-7/8 x 27-9/16 x 28-7/8 9-7/8 x 35-7/16 x 28-7/8
Net weight kg (lbs) 21 (47) 21 (47) 21 (47) 25 (56)
Heat exchanger
Cross fin (Aluminum fin and
copper tube)
Cross fin (Aluminum fin and
copper tube)
Cross fin (Aluminum fin and
copper tube)
Cross fin (Aluminum fin and
copper tube)
FAN Type x Quantity Sirocco fan x 1 Sirocco fan x 1 Sirocco fan x 1 Sirocco fan x 2
*4
External static press.
Pa
35 - <50> - <70> - <100> -
<150>
35 - <50> - <70> - <100> -
<150>
35 - <50> - <70> - <100> -
<150>
35 - <50> - <70> - <100> -
<150>
mmH2O
3.6 - <5.1> - <7.1> - <10.2> -
<15.3>
3.6 - <5.1> - <7.1> - <10.2> -
<15.3>
3.6 - <5.1> - <7.1> - <10.2> -
<15.3>
3.6 - <5.1> - <7.1> - <10.2> -
<15.3>
Motor Type DC motor DC motor DC motor DC motor
Motor output kW 0.085 0.085 0.085 0.121
Driving mechanism Direct-driven by motor Direct-driven by motor Direct-driven by motor Direct-driven by motor
Air flow rate (Low-Mid-High) (Low-Mid-High) (Low-Mid-High) (Low-Mid-High)
m3
/min 6.0 - 7.5 - 8.5 6.0 - 7.5 - 8.5 7.5 - 9.0 - 10.5 10.0 - 12.0 - 14.0
L/s 100 - 125 - 142 100 - 125 - 142 125 - 150 - 175 167 - 200 - 233
cfm 212 - 265 - 300 212 - 265 - 300 265 - 318 - 371 353 - 424 - 494
Sound pressure level (measured in anechoic room) (Low-Mid-High) (Low-Mid-High) (Low-Mid-High) (Low-Mid-High)
*2, 5
dB <A>
21.0-25.0-27.0 21.0-25.0-27.0 23.0-27.0-30.0 23.0-28.0-31.0
*2, 6 18.0-22.0-24.0 18.0-22.0-24.0 20.0-24.0-27.0 20.0-25.0-28.0
Insulation material
EPS, Polystyrene foam, Ure-
thane foam
EPS, Polystyrene foam, Ure-
thane foam
EPS, Polystyrene foam, Ure-
thane foam
EPS, Polystyrene foam, Ure-
thane foam
Air filter PP honeycomb fabric. PP honeycomb fabric. PP honeycomb fabric. PP honeycomb fabric.
Protection device Fuse Fuse Fuse Fuse
Refrigerant control device LEV LEV LEV LEV
Connectable outdoor unit R32, R410A CITY MULTI R32,R410A CITY MULTI R32, R410A CITY MULTI R32, R410A CITY MULTI
Refrigerant piping Liquid mm (in.) 6.35 (1/4)Brazed 6.35 (1/4)Brazed 6.35 (1/4)Brazed 6.35 (1/4)Brazed
diameter Gas mm (in.) 12.7 (1/2)Brazed 12.7 (1/2)Brazed 12.7 (1/2)Brazed 12.7 (1/2)Brazed
Field drain pipe size mm (in.) O.D.32 (1-1/4") O.D.32 (1-1/4") O.D.32 (1-1/4") O.D.32 (1-1/4")
Drawing External KB94C15Y KB94C15Y KB94C15Y KB94C15Y
Wiring KB94C15X KB94C15X KB94C15X KB94C15X
Refrigerant cycle - - - -
Standard attachment Document
Installation Manual, Instruction
Book
Installation Manual, Instruction
Book
Installation Manual, Instruction
Book
Installation Manual, Instruction
Book
Accessory Washer, Drain hose, Tie band Washer, Drain hose, Tie band Washer, Drain hose, Tie band Washer, Drain hose, Tie band
Optional parts Filter box PAC-KE91TB-E PAC-KE91TB-E PAC-KE91TB-E PAC-KE92TB-E
Plasma Quad Connect MAC-100FT-E MAC-100FT-E MAC-100FT-E MAC-100FT-E
PQ attachment (Rear inlet) PAC-HA31PAR PAC-HA31PAR PAC-HA31PAR PAC-HA31PAR
PQ attachment (Bottom inlet) PAC-HA31PAU PAC-HA31PAU PAC-HA31PAU PAC-HA31PAU
PQ box PAC-KE91PTB-E PAC-KE91PTB-E PAC-KE91PTB-E PAC-KE92PTB-E
Remarks * Details on foundation work, duct work, insulation work, electrical wiring, power source switch, and other items shall be referred
to the Installation Manual.
* Due to continuing improvement, above specifications may be subject to change without notice.
Notes: Unit converter
1.Nominal cooling conditions
Indoor:27°CDB/19°CWB (81°FDB/66°FWB), Outdoor:35°CDB (95°FDB)
Pipe length:7.5m (24-9/16ft.), Level difference:0m (0ft.)
2.The values are measured at the factory setting of external static pressure.
3.Nominal heating conditions
Indoor:20°CDB (68°FDB), Outdoor:7°CDB/6°CWB (45°FDB/43°FWB)
Pipe length:7.5m (24-9/16ft.), Level difference:0m (0ft.)
4.The factory setting of airflow mode and external static pressure mode is shown without < >.
Refer to "Fan characteristics curves", according to the external static pressure, in DATA BOOK for the usable range of air flow rate.
5.Measured in anechoic room with a 1 m air inlet duct and 2 m air outlet duct attached to the unit and 1.5 m below
the unit.
6.Measured in anechoic room with a 2 m air inlet duct and 2 m air outlet duct attached to the unit and 1.5 m below
the unit.
* The sound pressure level measured by the conventional method in JIS.
* R32 is flammable, and certain restrictions apply to the installation of units.
For detail, refer to the section in the Databook on installation restrictions.
BTU/h =kW x 3,412
cfm =m3
/min x 35.31
lbs =kg/0.4536
*Above specification data is
subject to rounding variation.
0000006347.BOOK 2 ページ 2021年7月13日 火曜日 午前9時52分
MEES21K075
PEFY-M-VMA(L)-A
3
1. SPECIFICATIONS Ceiling concealed (Medium static pressure type)
Model PEFY-M50VMA-A PEFY-M63VMA-A PEFY-M71VMA-A PEFY-M80VMA-A
Power source 1-phase 220-230-240 V 50 Hz 1-phase 220-230-240 V 50 Hz 1-phase 220-230-240 V 50 Hz 1-phase 220-230-240 V 50 Hz
Cooling capacity *1 kW 5.6 7.1 8.0 9.0
(Nominal) *1 BTU/h 19,100 24,200 27,300 30,700
*2 Power input kW 0.066 0.087 0.080 0.080
*2 Current input A 0.53-0.51-0.49 0.69-0.66-0.63 0.60-0.57-0.55 0.60-0.57-0.55
Heating capacity *3 kW 6.3 8.0 9.0 10.0
(Nominal) *3 BTU/h 21,500 27,300 30,700 34,100
*2 Power input kW 0.064 0.085 0.078 0.078
*2 Current input A 0.53-0.51-0.49 0.69-0.66-0.63 0.60-0.57-0.55 0.60-0.57-0.55
External finish Galvanized steel plate Galvanized steel plate Galvanized steel plate Galvanized steel plate
External dimension H x W x D mm 250 x 900 x 732 250 x 900 x 732 250 x 1,100 x 732 250 x 1,100 x 732
in. 9-7/8 x 35-7/16 x 28-7/8 9-7/8 x 35-7/16 x 28-7/8 9-7/8 x 43-5/16 x 28-7/8 9-7/8 x 43-5/16 x 28-7/8
Net weight kg (lbs) 25 (56) 27 (60) 30 (67) 30 (67)
Heat exchanger
Cross fin (Aluminum fin and
copper tube)
Cross fin (Aluminum fin and
copper tube)
Cross fin (Aluminum fin and
copper tube)
Cross fin (Aluminum fin and
copper tube)
FAN Type x Quantity Sirocco fan x 2 Sirocco fan x 2 Sirocco fan x 2 Sirocco fan x 2
*4
External static press.
Pa
35 - <50> - <70> - <100> -
<150>
35 - <50> - <70> - <100> -
<150>
40 - <50> - <70> - <100> -
<150>
40 - <50> - <70> - <100> -
<150>
mmH2O
3.6 - <5.1> - <7.1> - <10.2> -
<15.3>
3.6 - <5.1> - <7.1> - <10.2> -
<15.3>
4.1 - <5.1> - <7.1> - <10.2> -
<15.3>
4.1 - <5.1> - <7.1> - <10.2> -
<15.3>
Motor Type DC motor DC motor DC motor DC motor
Motor output kW 0.121 0.121 0.121 0.121
Driving mechanism Direct-driven by motor Direct-driven by motor Direct-driven by motor Direct-driven by motor
Air flow rate (Low-Mid-High) (Low-Mid-High) (Low-Mid-High) (Low-Mid-High)
m3/min 12.0 - 14.5 - 17.0 13.5 - 16.0 - 19.0 14.5 - 18.0 - 21.0 14.5 - 18.0 - 21.0
L/s 200 - 242 - 283 225 - 267 - 317 242 - 300 - 350 242 - 300 - 350
cfm 424 - 512 - 600 477 - 565 - 671 512 - 636 - 742 512 - 636 - 742
Sound pressure level (measured in anechoic room) (Low-Mid-High) (Low-Mid-High) (Low-Mid-High) (Low-Mid-High)
*2, 5
dB <A>
24.0-31.0-34.0 27.0-31.0-35.0 25.0-31.0-34.0 25.0-31.0-34.0
*2, 6 21.0-28.0-31.0 24.0-28.0-32.0 22.0-28.0-31.0 22.0-28.0-31.0
Insulation material
EPS, Polystyrene foam, Ure-
thane foam
EPS, Polystyrene foam, Ure-
thane foam
EPS, Polystyrene foam, Ure-
thane foam
EPS, Polystyrene foam, Ure-
thane foam
Air filter PP honeycomb fabric. PP honeycomb fabric. PP honeycomb fabric. PP honeycomb fabric.
Protection device Fuse Fuse Fuse Fuse
Refrigerant control device LEV LEV LEV LEV
Connectable outdoor unit R32, R410A CITY MULTI R32, R410A CITY MULTI R32, R410A CITY MULTI R32, R410A CITY MULTI
Refrigerant piping Liquid mm (in.) 6.35 (1/4)Brazed 9.52 (3/8)Brazed 9.52 (3/8)Brazed 9.52 (3/8)Brazed
diameter Gas mm (in.) 12.7 (1/2)Brazed 15.88 (5/8)Brazed 15.88 (5/8)Brazed 15.88 (5/8)Brazed
Field drain pipe size mm (in.) O.D.32 (1-1/4") O.D.32 (1-1/4") O.D.32 (1-1/4") O.D.32 (1-1/4")
Drawing External KB94C15Y KB94C15Y KB94C15Y KB94C15Y
Wiring KB94C15X KB94C15X KB94C15X KB94C15X
Refrigerant cycle - - - -
Standard attachment Document
Installation Manual, Instruction
Book
Installation Manual, Instruction
Book
Installation Manual, Instruction
Book
Installation Manual, Instruction
Book
Accessory Washer, Drain hose, Tie band Washer, Drain hose, Tie band Washer, Drain hose, Tie band Washer, Drain hose, Tie band
Optional parts Filter box PAC-KE92TB-E PAC-KE92TB-E PAC-KE93TB-E PAC-KE93TB-E
Plasma Quad Connect MAC-100FT-E MAC-100FT-E MAC-100FT-E MAC-100FT-E
PQ attachment (Rear inlet) PAC-HA31PAR PAC-HA31PAR PAC-HA31PAR PAC-HA31PAR
PQ attachment (Bottom inlet) PAC-HA31PAU PAC-HA31PAU PAC-HA31PAU PAC-HA31PAU
PQ box PAC-KE92PTB-E PAC-KE92PTB-E PAC-KE93PTB-E PAC-KE93PTB-E
Remarks * Details on foundation work, duct work, insulation work, electrical wiring, power source switch, and other items shall be referred
to the Installation Manual.
* Due to continuing improvement, above specifications may be subject to change without notice.
Notes: Unit converter
1.Nominal cooling conditions
Indoor:27°CDB/19°CWB (81°FDB/66°FWB), Outdoor:35°CDB (95°FDB)
Pipe length:7.5m (24-9/16ft.), Level difference:0m (0ft.)
2.The values are measured at the factory setting of external static pressure.
3.Nominal heating conditions
Indoor:20°CDB (68°FDB), Outdoor:7°CDB/6°CWB (45°FDB/43°FWB)
Pipe length:7.5m (24-9/16ft.), Level difference:0m (0ft.)
4.The factory setting of airflow mode and external static pressure mode is shown without < >.
Refer to "Fan characteristics curves", according to the external static pressure, in DATA BOOK for the usable range of air flow rate.
5.Measured in anechoic room with a 1 m air inlet duct and 2 m air outlet duct attached to the unit and 1.5 m below
the unit.
6.Measured in anechoic room with a 2 m air inlet duct and 2 m air outlet duct attached to the unit and 1.5 m below
the unit.
* The sound pressure level measured by the conventional method in JIS.
* R32 is flammable, and certain restrictions apply to the installation of units.
For detail, refer to the section in the Databook on installation restrictions.
BTU/h =kW x 3,412
cfm =m3/min x 35.31
lbs =kg/0.4536
*Above specification data is
subject to rounding variation.
0000006347.BOOK 3 ページ 2021年7月13日 火曜日 午前9時52分
MEES21K075
PEFY-M-VMA(L)-A
4
1. SPECIFICATIONS Ceiling concealed (Medium static pressure type)
Model PEFY-M100VMA-A PEFY-M125VMA-A PEFY-M140VMA-A
Power source 1-phase 220-230-240 V 50 Hz 1-phase 220-230-240 V 50 Hz 1-phase 220-230-240 V 50 Hz
Cooling capacity *1 kW 11.2 14.0 16.0
(Nominal) *1 BTU/h 38,200 47,800 54,600
*2 Power input kW 0.142 0.199 0.208
*2 Current input A 1.01-0.97-0.93 1.29-1.23-1.18 1.40-1.34-1.28
Heating capacity *3 kW 12.5 16.0 18.0
(Nominal) *3 BTU/h 42,700 54,600 61,400
*2 Power input kW 0.140 0.197 0.206
*2 Current input A 1.01-0.97-0.93 1.29-1.23-1.18 1.40-1.34-1.28
External finish Galvanized steel plate Galvanized steel plate Galvanized steel plate
External dimension H x W x D mm 250 x 1,400 x 732 250 x 1,400 x 732 250 x 1,600 x 732
in. 9-7/8 x 55-1/8 x 28-7/8 9-7/8 x 55-1/8 x 28-7/8 9-7/8 x 63 x 28-7/8
Net weight kg (lbs) 37 (82) 38 (84) 42 (93)
Heat exchanger
Cross fin (Aluminum fin and
copper tube)
Cross fin (Aluminum fin and
copper tube)
Cross fin (Aluminum fin and
copper tube)
FAN Type x Quantity Sirocco fan x 3 Sirocco fan x 3 Sirocco fan x 3
*4
External static press.
Pa
40 - <50> - <70> - <100> -
<150>
<40> - 50 - <70> - <100> -
<150>
<40> - 50 - <70> - <100> -
<150>
mmH2O
4.1 - <5.1> - <7.1> - <10.2> -
<15.3>
<4.1> - 5.1 - <7.1> - <10.2> -
<15.3>
<4.1> - 5.1 - <7.1> - <10.2> -
<15.3>
Motor Type DC motor DC motor DC motor
Motor output kW 0.300 0.300 0.300
Driving mechanism Direct-driven by motor Direct-driven by motor Direct-driven by motor
Air flow rate (Low-Mid-High) (Low-Mid-High) (Low-Mid-High)
m3/min 23.0 - 28.0 - 32.0 28.0 - 34.0 - 37.0 29.5 - 35.5 - 40.0
L/s 383 - 467 - 533 467 - 567 - 617 492 - 592 - 667
cfm 812 - 989 - 1,130 989 - 1,201 - 1,306 1,042 - 1,254 - 1,412
Sound pressure level (measured in anechoic room) (Low-Mid-High) (Low-Mid-High) (Low-Mid-High)
*2, 5
dB <A>
30.0-35.0-38.0 34.0-38.0-40.0 33.0-37.0-40.0
*2, 6 27.0-32.0-35.0 31.0-35.0-37.0 30.0-34.0-37.0
Insulation material
EPS, Polystyrene foam, Ure-
thane foam
EPS, Polystyrene foam, Ure-
thane foam
EPS, Polystyrene foam, Ure-
thane foam
Air filter PP honeycomb fabric. PP honeycomb fabric. PP honeycomb fabric.
Protection device Fuse Fuse Fuse
Refrigerant control device LEV LEV LEV
Connectable outdoor unit R32, R410A CITY MULTI R32, R410A CITY MULTI R32, R410A CITY MULTI
Refrigerant piping Liquid mm (in.) 9.52 (3/8)Brazed 9.52 (3/8)Brazed 9.52 (3/8)Brazed
diameter Gas mm (in.) 15.88 (5/8)Brazed 15.88 (5/8)Brazed 15.88 (5/8)Brazed
Field drain pipe size mm (in.) O.D.32 (1-1/4") O.D.32 (1-1/4") O.D.32 (1-1/4")
Drawing External KB94C15Y KB94C15Y KB94C15Y
Wiring KB94C15X KB94C15X KB94C15X
Refrigerant cycle - - -
Standard attachment Document
Installation Manual, Instruction
Book
Installation Manual, Instruction
Book
Installation Manual, Instruction
Book
Accessory Washer, Drain hose, Tie band Washer, Drain hose, Tie band Washer, Drain hose, Tie band
Optional parts Filter box PAC-KE94TB-E PAC-KE94TB-E PAC-KE95TB-E
Plasma Quad Connect MAC-100FT-E MAC-100FT-E MAC-100FT-E
PQ attachment (Rear inlet) PAC-HA31PAR PAC-HA31PAR PAC-HA31PAR
PQ attachment (Bottom inlet) PAC-HA31PAU PAC-HA31PAU PAC-HA31PAU
PQ box PAC-KE94PTB-E PAC-KE94PTB-E PAC-KE95PTB-E
Remarks * Details on foundation work, duct work, insulation work, electrical wiring, power source switch, and other items shall be referred
to the Installation Manual.
* Due to continuing improvement, above specifications may be subject to change without notice.
Notes: Unit converter
1.Nominal cooling conditions
Indoor:27°CDB/19°CWB (81°FDB/66°FWB), Outdoor:35°CDB (95°FDB)
Pipe length:7.5m (24-9/16ft.), Level difference:0m (0ft.)
2.The values are measured at the factory setting of external static pressure.
3.Nominal heating conditions
Indoor:20°CDB (68°FDB), Outdoor:7°CDB/6°CWB (45°FDB/43°FWB)
Pipe length:7.5m (24-9/16ft.), Level difference:0m (0ft.)
4.The factory setting of airflow mode and external static pressure mode is shown without < >.
Refer to "Fan characteristics curves", according to the external static pressure, in DATA BOOK for the usable range of air flow rate.
5.Measured in anechoic room with a 1 m air inlet duct and 2 m air outlet duct attached to the unit and 1.5 m below
the unit.
6.Measured in anechoic room with a 2 m air inlet duct and 2 m air outlet duct attached to the unit and 1.5 m below
the unit.
* The sound pressure level measured by the conventional method in JIS.
* R32 is flammable, and certain restrictions apply to the installation of units.
For detail, refer to the section in the Databook on installation restrictions.
BTU/h =kW x 3,412
cfm =m3/min x 35.31
lbs =kg/0.4536
*Above specification data is
subject to rounding variation.
0000006347.BOOK 4 ページ 2021年7月13日 火曜日 午前9時52分
MEES21K075
PEFY-M-VMA(L)-A
5
1. SPECIFICATIONS Ceiling concealed (Medium static pressure type)
Model PEFY-M20VMAL-A PEFY-M25VMAL-A PEFY-M32VMAL-A PEFY-M40VMAL-A
Power source 1-phase 220-230-240 V 50 Hz 1-phase 220-230-240 V 50 Hz 1-phase 220-230-240 V 50 Hz 1-phase 220-230-240 V 50 Hz
Cooling capacity *1 kW 2.2 2.8 3.6 4.5
(Nominal) *1 BTU/h 7,500 9,600 12,300 15,400
*2 Power input kW 0.030 0.030 0.042 0.045
*2 Current input A 0.26-0.25-0.24 0.26-0.25-0.24 0.36-0.34-0.33 0.39-0.37-0.36
Heating capacity *3 kW 2.5 3.2 4.0 5.0
(Nominal) *3 BTU/h 8,500 10,900 13,600 17,100
*2 Power input kW 0.030 0.030 0.042 0.045
*2 Current input A 0.26-0.25-0.24 0.26-0.25-0.24 0.36-0.34-0.33 0.39-0.37-0.36
External finish Galvanized steel plate Galvanized steel plate Galvanized steel plate Galvanized steel plate
External dimension H x W x D mm 250 x 700 x 732 250 x 700 x 732 250 x 700 x 732 250 x 900 x 732
in. 9-7/8 x 27-9/16 x 28-7/8 9-7/8 x 27-9/16 x 28-7/8 9-7/8 x 27-9/16 x 28-7/8 9-7/8 x 35-7/16 x 28-7/8
Net weight kg (lbs) 20 (45) 20 (45) 20 (45) 24 (53)
Heat exchanger
Cross fin (Aluminum fin and
copper tube)
Cross fin (Aluminum fin and
copper tube)
Cross fin (Aluminum fin and
copper tube)
Cross fin (Aluminum fin and
copper tube)
FAN Type x Quantity Sirocco fan x 1 Sirocco fan x 1 Sirocco fan x 1 Sirocco fan x 2
*4
External static press.
Pa
35 - <50> - <70> - <100> -
<150>
35 - <50> - <70> - <100> -
<150>
35 - <50> - <70> - <100> -
<150>
35 - <50> - <70> - <100> -
<150>
mmH2O
3.6 - <5.1> - <7.1> - <10.2> -
<15.3>
3.6 - <5.1> - <7.1> - <10.2> -
<15.3>
3.6 - <5.1> - <7.1> - <10.2> -
<15.3>
3.6 - <5.1> - <7.1> - <10.2> -
<15.3>
Motor Type DC motor DC motor DC motor DC motor
Motor output kW 0.085 0.085 0.085 0.121
Driving mechanism Direct-driven by motor Direct-driven by motor Direct-driven by motor Direct-driven by motor
Air flow rate (Low-Mid-High) (Low-Mid-High) (Low-Mid-High) (Low-Mid-High)
m3/min 6.0 - 7.5 - 8.5 6.0 - 7.5 - 8.5 7.5 - 9.0 - 10.5 10.0 - 12.0 - 14.0
L/s 100 - 125 - 142 100 - 125 - 142 125 - 150 - 175 167 - 200 - 233
cfm 212 - 265 - 300 212 - 265 - 300 265 - 318 - 371 353 - 424 - 494
Sound pressure level (measured in anechoic room) (Low-Mid-High) (Low-Mid-High) (Low-Mid-High) (Low-Mid-High)
*2, 5
dB <A>
21.0-25.0-27.0 21.0-25.0-27.0 23.0-27.0-30.0 23.0-28.0-31.0
*2, 6 18.0-22.0-24.0 18.0-22.0-24.0 20.0-24.0-27.0 20.0-25.0-28.0
Insulation material
EPS, Polystyrene foam, Ure-
thane foam
EPS, Polystyrene foam, Ure-
thane foam
EPS, Polystyrene foam, Ure-
thane foam
EPS, Polystyrene foam, Ure-
thane foam
Air filter PP honeycomb fabric. PP honeycomb fabric. PP honeycomb fabric. PP honeycomb fabric.
Protection device Fuse Fuse Fuse Fuse
Refrigerant control device LEV LEV LEV LEV
Connectable outdoor unit R32, R410A CITY MULTI R32, R410A CITY MULTI R32, R410A CITY MULTI R32, R410A CITY MULTI
Refrigerant piping Liquid mm (in.) 6.35 (1/4)Brazed 6.35 (1/4)Brazed 6.35 (1/4)Brazed 6.35 (1/4)Brazed
diameter Gas mm (in.) 12.7 (1/2)Brazed 12.7 (1/2)Brazed 12.7 (1/2)Brazed 12.7 (1/2)Brazed
Field drain pipe size mm (in.) O.D.32 (1-1/4") O.D.32 (1-1/4") O.D.32 (1-1/4") O.D.32 (1-1/4")
Drawing External KB94C15Z KB94C15Z KB94C15Z KB94C15Z
Wiring KB94C15X KB94C15X KB94C15X KB94C15X
Refrigerant cycle - - - -
Standard attachment Document
Installation Manual, Instruction
Book
Installation Manual, Instruction
Book
Installation Manual, Instruction
Book
Installation Manual, Instruction
Book
Accessory Washer, Drain hose, Tie band Washer, Drain hose, Tie band Washer, Drain hose, Tie band Washer, Drain hose, Tie band
Optional parts Filter box PAC-KE91TB-E PAC-KE91TB-E PAC-KE91TB-E PAC-KE92TB-E
Plasma Quad Connect MAC-100FT-E MAC-100FT-E MAC-100FT-E MAC-100FT-E
PQ attachment (Rear inlet) PAC-HA31PAR PAC-HA31PAR PAC-HA31PAR PAC-HA31PAR
PQ attachment (Bottom inlet) PAC-HA31PAU PAC-HA31PAU PAC-HA31PAU PAC-HA31PAU
PQ box PAC-KE91PTB-E PAC-KE91PTB-E PAC-KE91PTB-E PAC-KE92PTB-E
Remarks * Details on foundation work, duct work, insulation work, electrical wiring, power source switch, and other items shall be referred
to the Installation Manual.
* Due to continuing improvement, above specifications may be subject to change without notice.
Notes: Unit converter
1.Nominal cooling conditions
Indoor:27°CDB/19°CWB (81°FDB/66°FWB), Outdoor:35°CDB (95°FDB)
Pipe length:7.5m (24-9/16ft.), Level difference:0m (0ft.)
2.The values are measured at the factory setting of external static pressure.
3.Nominal heating conditions
Indoor:20°CDB (68°FDB), Outdoor:7°CDB/6°CWB (45°FDB/43°FWB)
Pipe length:7.5m (24-9/16ft.), Level difference:0m (0ft.)
4.The factory setting of airflow mode and external static pressure mode is shown without < >.
Refer to "Fan characteristics curves", according to the external static pressure, in DATA BOOK for the usable range of air flow rate.
5.Measured in anechoic room with a 1 m air inlet duct and 2 m air outlet duct attached to the unit and 1.5 m below
the unit.
6.Measured in anechoic room with a 2 m air inlet duct and 2 m air outlet duct attached to the unit and 1.5 m below
the unit.
* The sound pressure level measured by the conventional method in JIS.
* R32 is flammable, and certain restrictions apply to the installation of units.
For detail, refer to the section in the Databook on installation restrictions.
BTU/h =kW x 3,412
cfm =m3/min x 35.31
lbs =kg/0.4536
*Above specification data is
subject to rounding variation.
0000006347.BOOK 5 ページ 2021年7月13日 火曜日 午前9時52分
MEES21K075
PEFY-M-VMA(L)-A
6
1. SPECIFICATIONS Ceiling concealed (Medium static pressure type)
Model PEFY-M50VMAL-A PEFY-M63VMAL-A PEFY-M71VMAL-A PEFY-M80VMAL-A
Power source 1-phase 220-230-240 V 50 Hz 1-phase 220-230-240 V 50 Hz 1-phase 220-230-240 V 50 Hz 1-phase 220-230-240 V 50 Hz
Cooling capacity *1 kW 5.6 7.1 8.0 9.0
(Nominal) *1 BTU/h 19,100 24,200 27,300 30,700
*2 Power input kW 0.064 0.085 0.078 0.078
*2 Current input A 0.53-0.51-0.49 0.69-0.66-0.63 0.60-0.57-0.55 0.60-0.57-0.55
Heating capacity *3 kW 6.3 8.0 9.0 10.0
(Nominal) *3 BTU/h 21,500 27,300 30,700 34,100
*2 Power input kW 0.064 0.085 0.078 0.078
*2 Current input A 0.53-0.51-0.49 0.69-0.66-0.63 0.60-0.57-0.55 0.60-0.57-0.55
External finish Galvanized steel plate Galvanized steel plate Galvanized steel plate Galvanized steel plate
External dimension H x W x D mm 250 x 900 x 732 250 x 900 x 732 250 x 1,100 x 732 250 x 1,100 x 732
in. 9-7/8 x 35-7/16 x 28-7/8 9-7/8 x 35-7/16 x 28-7/8 9-7/8 x 43-5/16 x 28-7/8 9-7/8 x 43-5/16 x 28-7/8
Net weight kg (lbs) 24 (53) 26 (58) 29 (64) 29 (64)
Heat exchanger
Cross fin (Aluminum fin and
copper tube)
Cross fin (Aluminum fin and
copper tube)
Cross fin (Aluminum fin and
copper tube)
Cross fin (Aluminum fin and
copper tube)
FAN Type x Quantity Sirocco fan x 2 Sirocco fan x 2 Sirocco fan x 2 Sirocco fan x 2
*4
External static press.
Pa
35 - <50> - <70> - <100> -
<150>
35 - <50> - <70> - <100> -
<150>
40 - <50> - <70> - <100> -
<150>
40 - <50> - <70> - <100> -
<150>
mmH2O
3.6 - <5.1> - <7.1> - <10.2> -
<15.3>
3.6 - <5.1> - <7.1> - <10.2> -
<15.3>
4.1 - <5.1> - <7.1> - <10.2> -
<15.3>
4.1 - <5.1> - <7.1> - <10.2> -
<15.3>
Motor Type DC motor DC motor DC motor DC motor
Motor output kW 0.121 0.121 0.121 0.121
Driving mechanism Direct-driven by motor Direct-driven by motor Direct-driven by motor Direct-driven by motor
Air flow rate (Low-Mid-High) (Low-Mid-High) (Low-Mid-High) (Low-Mid-High)
m3/min 12.0 - 14.5 - 17.0 13.5 - 16.0 - 19.0 14.5 - 18.0 - 21.0 14.5 - 18.0 - 21.0
L/s 200 - 242 - 283 225 - 267 - 317 242 - 300 - 350 242 - 300 - 350
cfm 424 - 512 - 600 477 - 565 - 671 512 - 636 - 742 512 - 636 - 742
Sound pressure level (measured in anechoic room) (Low-Mid-High) (Low-Mid-High) (Low-Mid-High) (Low-Mid-High)
*2, 5
dB <A>
24.0-31.0-34.0 27.0-31.0-35.0 25.0-31.0-34.0 25.0-31.0-34.0
*2, 6 21.0-28.0-31.0 24.0-28.0-32.0 22.0-28.0-31.0 22.0-28.0-31.0
Insulation material
EPS, Polystyrene foam, Ure-
thane foam
EPS, Polystyrene foam, Ure-
thane foam
EPS, Polystyrene foam, Ure-
thane foam
EPS, Polystyrene foam, Ure-
thane foam
Air filter PP honeycomb fabric. PP honeycomb fabric. PP honeycomb fabric. PP honeycomb fabric.
Protection device Fuse Fuse Fuse Fuse
Refrigerant control device LEV LEV LEV LEV
Connectable outdoor unit R32, R410A CITY MULTI R32, R410A CITY MULTI R32, R410A CITY MULTI R32, R410A CITY MULTI
Refrigerant piping Liquid mm (in.) 6.35 (1/4)Brazed 9.52 (3/8)Brazed 9.52 (3/8)Brazed 9.52 (3/8)Brazed
diameter Gas mm (in.) 12.7 (1/2)Brazed 15.88 (5/8)Brazed 15.88 (5/8)Brazed 15.88 (5/8)Brazed
Field drain pipe size mm (in.) O.D.32 (1-1/4") O.D.32 (1-1/4") O.D.32 (1-1/4") O.D.32 (1-1/4")
Drawing External KB94C15Z KB94C15Z KB94C15Z KB94C15Z
Wiring KB94C15X KB94C15X KB94C15X KB94C15X
Refrigerant cycle - - - -
Standard attachment Document
Installation Manual, Instruction
Book
Installation Manual, Instruction
Book
Installation Manual, Instruction
Book
Installation Manual, Instruction
Book
Accessory Washer, Drain hose, Tie band Washer, Drain hose, Tie band Washer, Drain hose, Tie band Washer, Drain hose, Tie band
Optional parts Filter box PAC-KE92TB-E PAC-KE92TB-E PAC-KE93TB-E PAC-KE93TB-E
Plasma Quad Connect MAC-100FT-E MAC-100FT-E MAC-100FT-E MAC-100FT-E
PQ attachment (Rear inlet) PAC-HA31PAR PAC-HA31PAR PAC-HA31PAR PAC-HA31PAR
PQ attachment (Bottom inlet) PAC-HA31PAU PAC-HA31PAU PAC-HA31PAU PAC-HA31PAU
PQ box PAC-KE92PTB-E PAC-KE92PTB-E PAC-KE93PTB-E PAC-KE93PTB-E
Remarks * Details on foundation work, duct work, insulation work, electrical wiring, power source switch, and other items shall be referred
to the Installation Manual.
* Due to continuing improvement, above specifications may be subject to change without notice.
Notes: Unit converter
1.Nominal cooling conditions
Indoor:27°CDB/19°CWB (81°FDB/66°FWB), Outdoor:35°CDB (95°FDB)
Pipe length:7.5m (24-9/16ft.), Level difference:0m (0ft.)
2.The values are measured at the factory setting of external static pressure.
3.Nominal heating conditions
Indoor:20°CDB (68°FDB), Outdoor:7°CDB/6°CWB (45°FDB/43°FWB)
Pipe length:7.5m (24-9/16ft.), Level difference:0m (0ft.)
4.The factory setting of airflow mode and external static pressure mode is shown without < >.
Refer to "Fan characteristics curves", according to the external static pressure, in DATA BOOK for the usable range of air flow rate.
5.Measured in anechoic room with a 1 m air inlet duct and 2 m air outlet duct attached to the unit and 1.5 m below
the unit.
6.Measured in anechoic room with a 2 m air inlet duct and 2 m air outlet duct attached to the unit and 1.5 m below
the unit.
* The sound pressure level measured by the conventional method in JIS.
* R32 is flammable, and certain restrictions apply to the installation of units.
For detail, refer to the section in the Databook on installation restrictions.
BTU/h =kW x 3,412
cfm =m3/min x 35.31
lbs =kg/0.4536
*Above specification data is
subject to rounding variation.
0000006347.BOOK 6 ページ 2021年7月13日 火曜日 午前9時52分
MEES21K075
PEFY-M-VMA(L)-A
7
1. SPECIFICATIONS Ceiling concealed (Medium static pressure type)
Model PEFY-M100VMAL-A PEFY-M125VMAL-A PEFY-M140VMAL-A
Power source 1-phase 220-230-240 V 50 Hz 1-phase 220-230-240 V 50 Hz 1-phase 220-230-240 V 50 Hz
Cooling capacity *1 kW 11.2 14.0 16.0
(Nominal) *1 BTU/h 38,200 47,800 54,600
*2 Power input kW 0.140 0.197 0.206
*2 Current input A 1.01-0.97-0.93 1.29-1.23-1.18 1.40-1.34-1.28
Heating capacity *3 kW 12.5 16.0 18.0
(Nominal) *3 BTU/h 42,700 54,600 61,400
*2 Power input kW 0.140 0.197 0.206
*2 Current input A 1.01-0.97-0.93 1.29-1.23-1.18 1.40-1.34-1.28
External finish Galvanized steel plate Galvanized steel plate Galvanized steel plate
External dimension H x W x D mm 250 x 1,400 x 732 250 x 1,400 x 732 250 x 1,600 x 732
in. 9-7/8 x 55-1/8 x 28-7/8 9-7/8 x 55-1/8 x 28-7/8 9-7/8 x 63 x 28-7/8
Net weight kg (lbs) 36 (80) 37 (82) 41 (91)
Heat exchanger
Cross fin (Aluminum fin and
copper tube)
Cross fin (Aluminum fin and
copper tube)
Cross fin (Aluminum fin and
copper tube)
FAN Type x Quantity Sirocco fan x 3 Sirocco fan x 3 Sirocco fan x 3
*4
External static press.
Pa
40 - <50> - <70> - <100> -
<150>
<40> - 50 - <70> - <100> -
<150>
<40> - 50 - <70> - <100> -
<150>
mmH2O
4.1 - <5.1> - <7.1> - <10.2> -
<15.3>
<4.1> - 5.1 - <7.1> - <10.2> -
<15.3>
<4.1> - 5.1 - <7.1> - <10.2> -
<15.3>
Motor Type DC motor DC motor DC motor
Motor output kW 0.300 0.300 0.300
Driving mechanism Direct-driven by motor Direct-driven by motor Direct-driven by motor
Air flow rate (Low-Mid-High) (Low-Mid-High) (Low-Mid-High)
m3/min 23.0 - 28.0 - 32.0 28.0 - 34.0 - 37.0 29.5 - 35.5 - 40.0
L/s 383 - 467 - 533 467 - 567 - 617 492 - 592 - 667
cfm 812 - 989 - 1,130 989 - 1,201 - 1,306 1,042 - 1,254 - 1,412
Sound pressure level (measured in anechoic room) (Low-Mid-High) (Low-Mid-High) (Low-Mid-High)
*2, 5
dB <A>
30.0-35.0-38.0 34.0-38.0-40.0 33.0-37.0-40.0
*2, 6 27.0-32.0-35.0 31.0-35.0-37.0 30.0-34.0-37.0
Insulation material
EPS, Polystyrene foam, Ure-
thane foam
EPS, Polystyrene foam, Ure-
thane foam
EPS, Polystyrene foam, Ure-
thane foam
Air filter PP honeycomb fabric. PP honeycomb fabric. PP honeycomb fabric.
Protection device Fuse Fuse Fuse
Refrigerant control device LEV LEV LEV
Connectable outdoor unit R32, R410A CITY MULTI R32, R410A CITY MULTI R32, R410A CITY MULTI
Refrigerant piping Liquid mm (in.) 9.52 (3/8)Brazed 9.52 (3/8)Brazed 9.52 (3/8)Brazed
diameter Gas mm (in.) 15.88 (5/8)Brazed 15.88 (5/8)Brazed 15.88 (5/8)Brazed
Field drain pipe size mm (in.) O.D.32 (1-1/4") O.D.32 (1-1/4") O.D.32 (1-1/4")
Drawing External KB94C15Z KB94C15Z KB94C15Z
Wiring KB94C15X KB94C15X KB94C15X
Refrigerant cycle - - -
Standard attachment Document
Installation Manual, Instruction
Book
Installation Manual, Instruction
Book
Installation Manual, Instruction
Book
Accessory Washer, Drain hose, Tie band Washer, Drain hose, Tie band Washer, Drain hose, Tie band
Optional parts Filter box PAC-KE94TB-E PAC-KE94TB-E PAC-KE95TB-E
Plasma Quad Connect MAC-100FT-E MAC-100FT-E MAC-100FT-E
PQ attachment (Rear inlet) PAC-HA31PAR PAC-HA31PAR PAC-HA31PAR
PQ attachment (Bottom inlet) PAC-HA31PAU PAC-HA31PAU PAC-HA31PAU
PQ box PAC-KE94PTB-E PAC-KE94PTB-E PAC-KE95PTB-E
Remarks * Details on foundation work, duct work, insulation work, electrical wiring, power source switch, and other items shall be referred
to the Installation Manual.
* Due to continuing improvement, above specifications may be subject to change without notice.
Notes: Unit converter
1.Nominal cooling conditions
Indoor:27°CDB/19°CWB (81°FDB/66°FWB), Outdoor:35°CDB (95°FDB)
Pipe length:7.5m (24-9/16ft.), Level difference:0m (0ft.)
2.The values are measured at the factory setting of external static pressure.
3.Nominal heating conditions
Indoor:20°CDB (68°FDB), Outdoor:7°CDB/6°CWB (45°FDB/43°FWB)
Pipe length:7.5m (24-9/16ft.), Level difference:0m (0ft.)
4.The factory setting of airflow mode and external static pressure mode is shown without < >.
Refer to "Fan characteristics curves", according to the external static pressure, in DATA BOOK for the usable range of air flow rate.
5.Measured in anechoic room with a 1 m air inlet duct and 2 m air outlet duct attached to the unit and 1.5 m below
the unit.
6.Measured in anechoic room with a 2 m air inlet duct and 2 m air outlet duct attached to the unit and 1.5 m below
the unit.
* The sound pressure level measured by the conventional method in JIS.
* R32 is flammable, and certain restrictions apply to the installation of units.
For detail, refer to the section in the Databook on installation restrictions.
BTU/h =kW x 3,412
cfm =m3/min x 35.31
lbs =kg/0.4536
*Above specification data is
subject to rounding variation.
0000006347.BOOK 7 ページ 2021年7月13日 火曜日 午前9時52分
MEES21K075
PEFY-M-VMA(L)-A
8
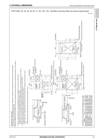
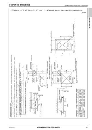
2. EXTERNAL DIMENSIONS Ceiling concealed (Medium static pressure type)
2. EXTERNAL DIMENSIONS
PEFY-M20, 25, 32, 40, 50, 63, 71, 80, 100, 125, 140VMA-A
Unit: mm
Control
box
2×2-ø2.9
Air
outlet
Air
inlet
2×E-ø2.9
Refrigerant
piping
Brazing
connection
(liquid)
2
1
Refrigerant
piping
Brazing
connection
(gas)
Drain
pump
Air
Filter
Terminal
block
(Power
source)
Terminal
block
(Transmission)
Drain
pipe(O.D.ø32)
(Spontaneous
draining)
Drain
pipe
(O.D.ø32)
Suspension
bolt
hole
4-14×30
Slot
Drain
hose
(I.D.ø32)
<Accessory>
(Actual
length)
Note
1.Use
M10
screw
for
the
Suspension
bolt
(field
supply).
2.Keep
the
service
space
for
the
maintenance
at
the
bottom.
3.This
chart
indicates
for
PEFY-M71·80VMA-A
models,
which
have
2
fans.PEFY-M20·25·32VMA-A
models
have
1
fan.
PEFY-M40·50·63VWA-A
models
have
2
fans.
PEFY-M100·125·140VMA-A
models
have
3
fans.
4.In
case
of
the
inlet
duct
is
used,
remove
the
air
filter
(supply
with
the
unit),
then
install
the
filter
(field
supply)
at
suction
side.
ø9.52
ø12.7
ø6.35
ø15.88
1558
1358
1500
1300
7
Model
A
660
800
1200
700
754
900
954
860
9
E
11
D
1060
C
1100
B
1154
PEFY-M140VMA-A
PEFY-M100,
125VMA-A
PEFY-M71,
80VMA-A
PEFY-M40,
50VMA-A
PEFY-M20,
25,
32VMA-A
1400
1600
1454
1654
1500
1700
1360
1560
14
16
1000
1000
F
858
800
G
658
1058
600
900
954
860
9
PEFY-M63VMA-A
1000
858
800
Inlet
air
side
view
Outlet
air
side
view
Top
Bottom
Piping
side
view
Top
view
40
250
40
33
122
D
(Duct) 20
210
18
G 21
100
57
73
10
A
B
(Suspension
bolt
pitch)
C
23
643
(Suspension
bolt
pitch)
178(Duct)
23
10
238
32
700
732
136
67
356
100
41
217
100
30
100×(E-1)=F
15
58
65
0
-10
Less
than
300mm Less
than
700mm
Liquid
pipe
2
Gas
pipe
1
0000006347.BOOK 8 ページ 2021年7月13日 火曜日 午前9時52分
MEES21K075
PEFY-M-VMA(L)-A
9
2. EXTERNAL DIMENSIONS Ceiling concealed (Medium static pressure type)
PEFY-M20, 25, 32, 40, 50, 63, 71, 80, 100, 125, 140VMA-A
Unit: mm
J×(L-1)=M
J
H
6
K
J
H
112
11 112
700
700
475
Min.10mm
475
Min.10mm
450
450
50
Q
50~150
450
Min.300mm
450
450
450
50
Min.300mm
50
700
777
777
R
S
P P
P
Min.300mm
Min.300mm
Min.20mm
50
N-ø2.9
Maintenance
access
space
Maintenance
access
space
Maintenance
access
space
Access
door
3
Access
door
4
Access
door
2
(450×450)
Ceiling
Ceiling
A
B
Fig.3
Fig.4
Fig.2
Fig.1
Fig.5
(Viewed
from
the
direction
of
the
arrow
A)
(Viewed
from
the
direction
of
the
arrow
B)
(Viewed
from
the
direction
of
the
arrow
B)
Intake
air
Intake
air
Supply
air
Supply
air
Access
door
2
(450×450)
Access
door
3
Ceiling
beam
Ceiling
beam
Bottom
of
indoor
unit
Bottom
of
indoor
unit
Bottom
of
indoor
unit
100~200
100~200
Access
door
1
(450×450)
Access
door
1
(450×450)
Control
box
Control
box
Control
box
Control
box
Control
box
[Maintenance
access
space]
Secure
enough
access
space
to
allow
for
the
maintenance,
inspection,
and
replacement
of
the
motor,
fan,
drain
pump,
heat
exchanger,
and
control
box
in
one
of
the
following
ways.
Select
an
installation
site
for
the
indoor
unit
so
that
its
maintenance
access
space
will
not
be
obstructed
by
beams
or
other
objects.
(1)
When
a
space
of
300mm
or
more
is
available
below
the
unit
between
the
unit
and
the
ceiling.
(Fig.1)
·
Create
access
door
1
and
2
(450×450mm
each)
as
shown
in
Fig.2.
(Access
door
2
is
not
required
if
enough
space
is
available
below
the
unit
for
a
maintenance
worker
to
work
in.)
(2)
When
a
space
of
less
than
300mm
is
available
below
the
unit
between
the
unit
and
the
ceiling.
(At
least
20mm
of
space
should
be
left
below
the
unit
as
shown
in
Fig.3.)
·
Create
access
door
1
diagonally
below
the
control
box
and
access
door
3
below
the
unit
as
shown
in
Fig.4.
or
·
Create
access
door
4
below
the
control
box
and
the
unit
as
shown
in
Fig.5.
12
H
Model
PEFY-M20,
25,
32VMA-A
PEFY-M40,
50,
63VMA-A
PEFY-M71,
80VMA-A
PEFY-M100,
125VMA-A
PEFY-M140VMA-A
12
1480
1280
5
5
370
320
54
54
330
K
49
L
4
M
990
N
10
10
780
4
260
54
150
44
300
J
10
900
150~250
1000
1500
1100
1400
1600
250~350
400~500
500~600
1200
1500
1700
1700
2000
2200
P
Q
R
S
700
50~150
800
1300
0000006347.BOOK 9 ページ 2021年7月13日 火曜日 午前9時52分
MEES21K075
PEFY-M-VMA(L)-A
10
2. EXTERNAL DIMENSIONS Ceiling concealed (Medium static pressure type)
PEFY-M20, 25, 32, 40, 50, 63, 71, 80, 100, 125, 140VMA-A Suction filter box built-in-specification
Unit: mm
Control
box
2×2-ø2.9
Air
outlet
2×E-ø2.9
Refrigerant
piping
Brazing
connection
(liquid)
2
1
Refrigerant
piping
Brazing
connection
(gas)
Drain
pump
Terminal
block
(Power
source)
Terminal
block
(Transmission)
Drain
pipe
(O.D.ø32)
(Spontaneous
draining)
Drain
pipe
(O.D.ø32)
Suspension
bolt
hole
4-14×30
Slot
Drain
hose
(I.D.ø32)
<Accessory>
(Actual
length)
Air
inlet
2×H-ø2.9
2×1-ø2.9
Filter
box
Air
Filter
3
Air
Filter
Note
1.Use
M10
screw
for
the
Suspension
bolt
(field
supply).
2.Keep
the
service
space
for
the
maintenance
at
the
bottom.
3.This
chart
indicates
for
PEFY-M71·80VMA-A
models,
which
have
2
fans.PEFY-M20·25·32VMA-A
models
have
1
fan.
PEFY-M40·50·63VWA-A
models
have
2
fans.
PEFY-M100·125·140VMA-A
models
have
3
fans.
4.Use
air
filter
installed
with
indoor
unit.
1558
1358
1500
1300
7
Model
A
660
800
1200
700
754
900
954
860
9
E
11
D
1060
C
1100
B
1154
PEFY-M140VMA-A
PEFY-M100,125VMA-A
PEFY-M71,80VMA-A
PEFY-M40,50,63VMA-A
PEFY-M20,25,32VMA-A
1400
1600
1454
1654
1500
1700
1360
1560
14
16
1000
1000
F
858
800
G
658
1058
600
<Suction
filter
box
built-in-specification>
1500
1300
1000
H
800
J
600
7
9
11
14
16
ø9.52
ø12.7
ø6.35
ø15.88
2
Liquid
pipe
1
Gas
pipe
Model
PEFY-M140VMA-A
PEFY-M100,125VMA-A
PEFY-M71,80VMA-A
PEFY-M40,50VMA-A
PEFY-M20,25,32VMA-A
PEFY-M63VMA-A
PAC-KE91TB-E
PAC-KE92TB-E
PAC-KE93TB-E
PAC-KE94TB-E
PAC-KE95TB-E
3
Filter
box
PAC-KE92TB-E
Top
Bottom
Piping
side
view
Inlet
air
side
view
Top
view
250
40
33
122
D
(Duct) 20
15
G
(Duct) 21
100
57
73
10
A
B
(Suspension
bolt
pitch)
C
23
643
(Suspension
bolt
pitch)
178
(Duct)
23
10
238
32
700
136
67
356
100
41
217
100
30
100×(E-1)=F
65
0
-10
Less
than
300mm
Less
than
700mm
40
58
29
100×(H-1)=J
10
100
911
153
26
20 208(Duct)
104
10
0000006347.BOOK 10 ページ 2021年7月13日 火曜日 午前9時52分
MEES21K075
PEFY-M-VMA(L)-A
11
2. EXTERNAL DIMENSIONS Ceiling concealed (Medium static pressure type)
PEFY-M20, 25, 32, 40, 50, 63, 71, 80, 100, 125, 140VMA-A Suction filter box built-in-specification
Unit: mm
P
Min.480mm
853
50
50
628
853
Min.480mm
853
450
628
Min.10mm
Min.10mm
450
450
L
50~150
Min.480mm
450
450
450
50
50
960
960
M
N
K K
K
Min.300mm
Min.20mm
Maintenance
access
space
Maintenance
access
space
Maintenance
access
space
Access
door
3
Access
door
4
Access
door
2
(450×450)
Ceiling
Ceiling
A
B
Fig.3
Fig.4
Fig.2
Fig.1
Fig.5
(Viewed
from
the
direction
of
the
arrow
A)
*In
case
of
side
maintenance
for
air
filter.
*In
case
of
side
maintenance
for
air
filter.
More
than
200
More
than
200
(Viewed
from
the
direction
of
the
arrow
B)
(Viewed
from
the
direction
of
the
arrow
B)
Intake
air
Intake
air
Supply
air
Supply
air
Access
door
2
(450×450)
Access
door
3
Ceiling
beam
Ceiling
beam
Bottom
of
indoor
unit
Bottom
of
indoor
unit
Bottom
of
indoor
unit
250~300
250~300
Access
door
1
(450×450)
Access
door
1
(450×450)
Control
box
Control
box
Control
box
Control
box
Control
box
<Suction
filter
box
built-in-specification>
[Maintenance
access
space]
Secure
enough
access
space
to
allow
for
the
maintenance,
inspection,
and
replacement
of
the
motor,
fan,
drain
pump,
heat
exchanger,
and
control
box
in
one
of
the
following
ways.
Select
an
installation
site
for
the
indoor
unit
so
that
its
maintenance
access
space
will
not
be
obstructed
by
beams
or
other
objects.
(1)
When
a
space
of
300mm
or
more
is
available
below
the
unit
between
the
unit
and
the
ceiling.
(Fig.1)
·
Create
access
door
1
and
2
(450×450mm
each)
as
shown
in
Fig.2.
(Access
door
2
is
not
required
if
enough
space
is
available
below
the
unit
for
a
maintenance
worker
to
work
in.)
(2)
When
a
space
of
less
than
300mm
is
available
below
the
unit
between
the
unit
and
the
ceiling.
(At
least
20mm
of
space
should
be
left
below
the
unit
as
shown
in
Fig.3.)
·
Create
access
door
1
diagonally
below
the
control
box
and
access
door
3
below
the
unit
as
shown
in
Fig.4.
or
·
Create
access
door
4
below
the
control
box
and
the
unit
as
shown
in
Fig.5.
PEFY-M20,
25,
32VMA-A
PEFY-M40,
50,
63VMA-A
PEFY-M71,
80VMA-A
PEFY-M100,
125VMA-A
PEFY-M140VMA-A
Model
2550
2150
1850
1450
900
150~250
1000
1500
1100
1400
1600
250~350
400~500
500~600
1200
1500
1700
1700
2000
2200
K
L
M
N
P
*
700
50~150
800
1300
*
Dimension
'P'
is
in
case
of
side
maintenance
for
air
filter.
0000006347.BOOK 11 ページ 2021年7月13日 火曜日 午前9時52分
MEES21K075
PEFY-M-VMA(L)-A
12
2. EXTERNAL DIMENSIONS Ceiling concealed (Medium static pressure type)
PEFY-M20, 25, 32, 40, 50, 63, 71, 80, 100, 125, 140VMAL-A
Unit: mm
Control
box
2×2-ø2.9
Air
outlet
Air
inlet
2×E-ø2.9
Refrigerant
piping
Brazing
connection
(liquid)
2
1
Refrigerant
piping
Brazing
connection
(gas)
Air
Filter
Terminal
block
(Power
source)
Terminal
block
(Transmission)
Drain
pipe
(O.D.ø32)
Suspension
bolt
hole
4-14×30
Slot
<Accessory>
Drain
hose
(I.D.ø32)
(Actual
length)
Note
1.Use
M10
screw
for
the
Suspension
bolt
(field
supply).
2.Keep
the
service
space
for
the
maintenance
at
the
bottom.
3.This
chart
indicates
for
PEFY-M71·80VMAL-A
models,
which
have
2
fans.PEFY-M20·25·32VMAL-A
models
have
1
fan.
PEFY-M40·50·63VMAL-A
models
have
2
fans.
PEFY-M100·125·140VMAL-A
models
have
3
fans.
4.In
case
of
the
inlet
duct
is
used,
remove
the
air
filter
(supply
withthe
unit),
then
install
the
filter
(field
supply)
at
suction
side.
ø9.52
ø12.7
ø6.35
ø15.88
2
Liquid
pipe
1
Gas
pipe
1558
1358
1500
1300
7
Model
A
660
800
1200
700
754
900
954
860
9
E
11
D
1060
C
1100
B
1154
PEFY-M140VMAL-A
PEFY-M100,
125VMAL-A
PEFY-M71,
80VMAL-A
PEFY-M40,
50VMAL-A
PEFY-M20,
25,
32VMAL-A
1400
1600
1454
1654
1500
1700
1360
1560
14
16
1000
1000
F
858
800
G
658
1058
600
900
954
860
9
PEFY-M63VMAL-A
1000
858
800
Top
Bottom
Piping
side
view
Top
view
Inlet
air
side
view
Outlet
air
side
view
250
40
33
122
D
(Duct) 20
210
18
G 21
100
57
73
10
A
B
(Suspension
bolt
pitch)
C
23
643
(Suspension
bolt
pitch)
178(Duct)
23
10
32
700
732
136
67
356
100
217
100
30
100×(E-1)=F
15
24
32
0
-10
0000006347.BOOK 12 ページ 2021年7月13日 火曜日 午前9時52分
MEES21K075
PEFY-M-VMA(L)-A
13
2. EXTERNAL DIMENSIONS Ceiling concealed (Medium static pressure type)
PEFY-M20, 25, 32, 40, 50, 63, 71, 80, 100, 125, 140VMAL-A
Unit: mm
J×(L-1)=M
J
H
6
K
J
H
112
11 112
700
700
475
Min.10mm
475
Min.10mm
450
450
50
Q
50~150
450
Min.300mm
450
450
450
50
Min.300mm
50
700
777
777
R
S
P P
P
Min.300mm
Min.300mm
Min.20mm
50
N-ø2.9
Maintenance
access
space
Maintenance
access
space
Maintenance
access
space
Access
door
3
Access
door
4
Access
door
2
(450×450)
Ceiling
Ceiling
A
B
Fig.3
Fig.4
Fig.2
Fig.1
Fig.5
(Viewed
from
the
direction
of
the
arrow
A)
(Viewed
from
the
direction
of
the
arrow
B)
(Viewed
from
the
direction
of
the
arrow
B)
Intake
air
Intake
air
Supply
air
Supply
air
Access
door
2
(450×450)
Access
door
3
Ceiling
beam
Ceiling
beam
Bottom
of
indoor
unit
Bottom
of
indoor
unit
Bottom
of
indoor
unit
100~200
100~200
Access
door
1
(450×450)
Access
door
1
(450×450)
Control
box
Control
box
Control
box
Control
box
Control
box
[Maintenance
access
space]
Secure
enough
access
space
to
allow
for
the
maintenance,
inspection,
and
replacement
of
the
motor,
fan,
heat
exchanger,
and
control
box
in
one
of
the
following
ways.
Select
an
installation
site
for
the
indoor
unit
so
that
its
maintenance
access
space
will
not
be
obstructed
by
beams
or
other
objects.
(1)
When
a
space
of
300mm
or
more
is
available
below
the
unit
between
the
unit
and
the
ceiling.
(Fig.1)
·
Create
access
door
1
and
2
(450×450mm
each)
as
shown
in
Fig.2.
(Access
door
2
is
not
required
if
enough
space
is
available
below
the
unit
for
a
maintenance
worker
to
work
in.)
(2)
When
a
space
of
less
than
300mm
is
available
below
the
unit
between
the
unit
and
the
ceiling.
(At
least
20mm
of
space
should
be
left
below
the
unit
as
shown
in
Fig.3.)
·
Create
access
door
1
diagonally
below
the
control
box
and
access
door
3
below
the
unit
as
shown
in
Fig.4.
or
·
Create
access
door
4
below
the
control
box
and
the
unit
as
shown
in
Fig.5.
Model
PEFY-M20,
25,
32VMAL-A
PEFY-M40,
50,
63VMAL-A
PEFY-M71,
80VMAL-A
PEFY-M100,
125VMAL-A
PEFY-M140VMAL-A
12
H
12
1480
1280
5
5
370
320
54
54
330
K
49
L
4
M
990
N
10
10
780
4
260
54
150
44
300
J
10
900
150〜250
1000
1500
1100
1400
1600
250〜350
400〜500
500〜600
1200
1500
1700
1700
2000
2200
P
Q
R
S
700
50〜150
800
1300
0000006347.BOOK 13 ページ 2021年7月13日 火曜日 午前9時52分
MEES21K075
PEFY-M-VMA(L)-A
14
2. EXTERNAL DIMENSIONS Ceiling concealed (Medium static pressure type)
PEFY-M20, 25, 32, 40, 50, 63, 71, 80, 100, 125, 140VMAL-A Suction filter box built-in-specification
Unit: mm
250
40
33
122
D
(Duct) 20
15
G
(Duct) 21
100
57
73
10
A
B
(Suspension
bolt
pitch)
C
23
643
(Suspension
bolt
pitch)
178(Duct)
23
10
32
700
136
67
356
100
217
100
30
100×(E-1)=F
32
0
-10
24
10
100×(H-1)=J
100
29
2×H-ø2.9
104
911
26
153
208(Duct)
20
10
2×2-ø2.9
Air
outlet
2×E-ø2.9
Refrigerant
piping
Brazing
connection
(liquid)
2
1
Refrigerant
piping
Brazing
connection
(gas)
Drain
pipe
(O.D.ø32)
Suspension
bolt
hole
4-14×30
Slot
<Accessory>
Drain
hose
(I.D.ø32)
(Actual
length)
Air
Filter
Air
inlet
Control
box
Filter
box
2×1-ø2.9
3
Terminal
block
(Power
source)
Terminal
block
(Transmission)
Air
Filter
1558
1358
1500
1300
7
Model
A
660
800
1200
700
754
900
954
860
9
E
11
D
1060
C
1100
B
1154
PEFY-M140VMAL-A
PEFY-M100,
125VMAL-A
PEFY-M71,
80VMAL-A
PEFY-M40,
50,
63VMAL-A
PEFY-M20,
25,
32VMAL-A
1400
1600
1454
1654
1500
1700
1360
1560
14
16
1000
1000
F
858
800
G
658
1058
600
<Suction
filter
box
built-in-specification>
1500
1300
1000
H
800
J
600
7
9
11
14
16
ø9.52
ø12.7
ø6.35
ø15.88
2
Liquid
pipe
1
Gas
pipe
Model
PEFY-M140VMAL-A
PEFY-M100,
125VMAL-A
PEFY-M71,
80VMAL-A
PEFY-M40,
50VMAL-A
PEFY-M20,
25,
32VMAL-A
PEFY-M63VMAL-A
PAC-KE91TB-E
PAC-KE92TB-E
PAC-KE93TB-E
PAC-KE94TB-E
PAC-KE95TB-E
3
Filter
box
PAC-KE92TB-E
Top
view
Inlet
air
side
view
Top
Bottom
Piping
side
view
Note
1.Use
M10
screw
for
the
Suspension
bolt
(field
supply).
2.Keep
the
service
space
for
the
maintenance
at
the
bottom.
3.This
chart
indicates
for
PEFY-M71·80VMAL-A
models,
which
have
2
fans.PEFY-M20·25·32VMAL-A
models
have
1
fan.
PEFY-M40·50·63VMAL-A
models
have
2
fans.
PEFY-M100·125·140VMAL-A
models
have
3
fans.
4.Use
air
filter
installed
with
indoor
unit.
0000006347.BOOK 14 ページ 2021年7月13日 火曜日 午前9時52分
MEES21K075
PEFY-M-VMA(L)-A
15
2. EXTERNAL DIMENSIONS Ceiling concealed (Medium static pressure type)
PEFY-M20, 25, 32, 40, 50, 63, 71, 80, 100, 125, 140VMAL-A Suction filter box built-in-specification
Unit: mm
P
Min.480mm
853
50
50
628
853
Min.480mm
853
450
628
Min.10mm
Min.10mm
450
450
L
50~150
Min.480mm
450
450
450
50
50
960
960
M
N
K K
K
Min.300mm
Min.20mm
Maintenance
access
space
Maintenance
access
space
Maintenance
access
space
Access
door
3
Access
door
4
Access
door
2
(450×450)
Ceiling
Ceiling
A
B
Fig.3
Fig.4
Fig.2
Fig.1
Fig.5
(Viewed
from
the
direction
of
the
arrow
A)
*
In
case
of
side
maintenance
for
air
filter.
*
In
case
of
side
maintenance
for
air
filter.
More
than
200
More
than
200
(Viewed
from
the
direction
of
the
arrow
B)
(Viewed
from
the
direction
of
the
arrow
B)
Intake
air
Intake
air
Supply
air
Supply
air
Access
door
2
(450×450)
Access
door
3
Ceiling
beam
Ceiling
beam
Bottom
of
indoor
unit
Bottom
of
indoor
unit
Bottom
of
indoor
unit
250~300
250~300
Access
door
1
(450×450)
Access
door
1
(450×450)
Control
box
Control
box
Control
box
Control
box
Control
box
<Suction
filter
box
built-in-specification>
[Maintenance
access
space]
Secure
enough
access
space
to
allow
for
the
maintenance,
inspection,
and
replacement
of
the
motor,
fan,
heat
exchanger,
and
control
box
in
one
of
the
following
ways.
Select
an
installation
site
for
the
indoor
unit
so
that
its
maintenance
access
space
will
not
be
obstructed
by
beams
or
other
objects.
(1)
When
a
space
of
300mm
or
more
is
available
below
the
unit
between
the
unit
and
the
ceiling.
(Fig.1)
·
Create
access
door
1
and
2
(450×450mm
each)
as
shown
in
Fig.2.
(Access
door
2
is
not
required
if
enough
space
is
available
below
the
unit
for
a
maintenance
worker
to
work
in.)
(2)
When
a
space
of
less
than
300mm
is
available
below
the
unit
between
the
unit
and
the
ceiling.
(At
least
20mm
of
space
should
be
left
below
the
unit
as
shown
in
Fig.3.)
·
Create
access
door
1
diagonally
below
the
control
box
and
access
door
3
below
the
unit
as
shown
in
Fig.4.
or
·
Create
access
door
4
below
the
control
box
and
the
unit
as
shown
in
Fig.5.
PEFY-M20,
25,
32VMAL-A
PEFY-M40,
50,
63VMAL-A
PEFY-M71,
80VMAL-A
PEFY-M100,
125VMAL-A
PEFY-M140VMAL-A
Model
2550
2150
1850
1450
900
150~250
1000
1500
1100
1400
1600
250~350
400~500
500~600
1200
1500
1700
1700
2000
2200
K
L
M
N
P
*
700
50~150
800
1300
*
Dimension
'P'
is
in
case
of
side
maintenance
for
air
filter.
0000006347.BOOK 15 ページ 2021年7月13日 火曜日 午前9時52分
MEES21K075
PEFY-M-VMA(L)-A
16
3. CENTER OF GRAVITY Ceiling concealed (Medium static pressure type)
3. CENTER OF GRAVITY
Model name
PEFY-M20VMA(L)-A
PEFY-M25VMA(L)-A
PEFY-M32VMA(L)-A
PEFY-M40VMA(L)-A
PEFY-M50VMA(L)-A
PEFY-M63VMA(L)-A
PEFY-M71VMA(L)-A
PEFY-M80VMA(L)-A
PEFY-M100VMA(L)-A
PEFY-M125VMA(L)-A
W
643 [25 - 6/16]
643 [25 - 6/16]
643 [25 - 6/16]
643 [25 - 6/16]
643 [25 - 6/16]
643 [25 - 6/16]
643 [25 - 6/16]
643 [25 - 6/16]
643 [25 - 6/16]
643 [25 - 6/16]
L
754 [29 - 11/16]
754 [29 - 11/16]
754 [29 - 11/16]
954 [37 - 9/16]
954 [37 - 9/16]
954 [37 - 9/16]
1154 [45 - 7/16]
1154 [45 - 7/16]
1454 [57 - 4/16]
1454 [57 - 4/16]
X
330 [13]
330 [13]
330 [13]
340 [13 - 7/16]
340 [13 - 7/16]
340 [13 - 7/16]
325 [12 - 13/16]
325 [12 - 13/16]
330 [13]
330 [13]
Y
300 [11 -13/16]
300 [11 -13/16]
300 [11 -13/16]
375 [14 -13/16]
375 [14 -13/16]
375 [14 -13/16]
525 [20 -11/16]
525 [20 -11/16]
675 [26 -10/16]
675 [26 -10/16]
Z
130 [5 -2/16]
130 [5 -2/16]
130 [5 -2/16]
130 [5 -2/16]
130 [5 -2/16]
130 [5 -2/16]
130 [5 -2/16]
130 [5 -2/16]
130 [5 -2/16]
130 [5 -2/16]
PEFY-M140VMA(L)-A 643 [25 - 6/16] 1654 [65 - 2/16] 332 [13 - 2/16] 725 [28 -9/16] 130 [5 -2/16]
A : Center of gravity
Y
X
L
W
A
Z
PEFY-M20, 25, 32, 40, 50, 63, 71, 80, 100, 125, 140VMA(L)-A
(mm) [in]
0000006347.BOOK 16 ページ 2021年7月13日 火曜日 午前9時52分
MEES21K075
PEFY-M-VMA(L)-A
17
4. ELECTRICAL WIRING DIAGRAMS Ceiling concealed (Medium static pressure type)
4. ELECTRICAL WIRING DIAGRAMS
PEFY-M20, 25, 32, 40, 50, 63, 71, 80, 100, 125, 140VMA(L)-A
L
N
OFF
ON
CND
(Red)
CNMF1
INSIDE
SECTION
OF
CONTROL
BOX
SWE
TB2
3
CNP
LED1
POWER
SUPPLY
AC220,230,240V
50Hz
M1
M2
3
1
7
S
CN2M
(Blue)
1
1
2
TB15
1
CN3A
(Blue)
3
5 6
7
8
9
0
1
2
3
4
SW12
(10ths
digit)
SW1
SW2
SW3
SW4
SW21
SW22
CN20
(Red)
6
CN60
4
3
2
1
DP
M
3~
LEV
M
(SHEILD)
TB5
TO
NEXT
INDOOR
UNIT
BREAKER(16A)
FUSE(16A)
PULL
BOX
TO
MA
REMOTE
CONTROLLER
TO
OUTDOOR
UNIT
BC
CONTROLLER
REMOTE
CONTROLLER
MF
M
3~
1
CNACL
(Black)
SA
U
U
ZNR001
ZNR002
F1
CN51
CN52
(Green)
CN32
*ONLY
FOR
PEFY-M·VMA-A
CN105
(Red)
0
9
8
7
6
5
4
3
2
1
SW11
(1s
digit)
0
8
7
6
5
4
3
2
1
SW14
(BRANCH
No.)
F
E
D
C
B
A
9
LED2
CN90
FS
3
CN44
4
1
2
TH22
3
4
1
2
*FOR
PEFY-M·VMAL-A
CN2A
(Black)
ACL
I.B.
CN41
CN4F
3
4
1
2
1
2
4
1
3
5
2
DC280-340V
Rectifier
circuit
CN27
(Red)
F2
CN22
(Green)
CN4F
TH23
TH21
5
6
7
4
1
5
6
2
1
ACL
SYMBOL
SYMBOL
EXPLANATION
NAME
AC
reactor(Power
factor
improvement)
Drain
Pump
Float
switch
Power
source
terminal
block
Transmission
terminal
block
Transmission
terminal
block
Thermistor
(inlet
air
temp.
detection)
Thermistor
(piping
temp.detection/liquid)
Thermistor
(piping
temp.detection/gas)
DP
FS
TB2
TB5
TB15
TH21
TH22
TH23
CN2A
Connector
(0-10V
Analog
input)
CN32
Connector
(Remote
switch)
CN41
Connector
(HA
terminal-A)
CN51
Connector
(Centrally
control)
CN52
Connector
(Remote
indication)
CN90
Connector
(Wireless)
CN105
Connector
(IT
terminal)
SW1
Switch
(for
mode
selection)
SW2
Switch
(for
capacity
code)
SW3
Switch
(for
mode
selection)
SW14
Switch
(BRANCH
No.)
SW21
Switch
(for
static
pressure
selection)
SW22
Switch
(Wireless
pair
No.)
SWE
Connector
(emergency
operation)
LED1
LED(Power
supply)
LED2
LED(Remote
controller
supply)
SYMBOL
NAME
SYMBOL
NAME
SA
Arrester
F1
Fuse
AC250V
6.3A
ZNR001,002
Varistor
SW4
Switch
(for
model
selection)
SW11
Switch
(1s
digit
address
set)
SW12
Switch
(10ths
digit
address
set)
I.B.
Indoor
controller
board
I.B.
Indoor
controller
board
Linear
expansion
valve
LEV
Fuse
DC400V
3A
F2
CN27
Connector
(Damper)
Fan
Motor
MF
CN22
Connector
(Optional
Thermistor)
NOTE)1.Symbols
used
in
wiring
diagram
are
:
Connector,
:
Terminal,
(Heavy
dotted
line):
Field
wiring,
2.Have
all
electric
work
done
by
a
licensed
electrician
according
to
the
local
regulations.
3.Earth
leakage
circuit
breaker
should
be
set
up
on
the
wiring
of
the
power
supply.
4.To
perform
a
drainage
test
for
the
drain
pump
turn
on
the
SWE
on
the
control
board
while
the
indoor
unit
is
being
powered.
*Be
sure
to
turn
off
the
SWE
after
completing
a
drainage
test
or
test
run.
t°
t°
t°
0000006347.BOOK 17 ページ 2021年7月13日 火曜日 午前9時52分
MEES21K075
PEFY-M-VMA(L)-A
18
5. SOUND LEVELS Ceiling concealed (Medium static pressure type)
5. SOUND LEVELS
5-1. Sound levels
5-1-1. Sound levels (Measured point: With 1m air inlet duct and 2m air outlet duct)
5-1-2. Sound levels (Measured point: With 2m air inlet duct and 2m air outlet duct)
Sound level at anechoic room: Low-Mid-High
Model Sound level dB (A)
35Pa 40Pa 50Pa 70Pa 100Pa 150Pa
PEFY-M20, 25VMA(L)-A 21-25-27 - 23-26-29 22-27-30 24-30-33 28-34-38
PEFY-M32VMA(L)-A 23-27-30 - 24-28-33 25-30-34 27-32-35 31-35-39
PEFY-M40VMA(L)-A 23-28-31 - 24-31-33 27-31-35 29-33-37 32-37-41
PEFY-M50VMA(L)-A 24-31-34 - 28-32-36 28-33-38 31-36-40 33-38-42
PEFY-M63VMA(L)-A 27-31-35 - 30-33-38 30-35-39 32-37-41 35-40-44
PEFY-M71, 80VMA(L)-A - 25-31-34 29-32-35 29-33-37 30-35-39 33-39-42
PEFY-M100VMA(L)-A - 30-35-38 31-36-39 33-38-41 35-40-43 37-43-46
PEFY-M125VMA(L)-A - 33-37-39 34-38-40 34-39-41 35-40-42 38-43-45
PEFY-M140VMA(L)-A - 33-37-39 33-37-40 34-38-40 35-39-42 37-41-45
Sound level at anechoic room: Low-Mid-High
Model Sound level dB (A)
35Pa 40Pa 50Pa 70Pa 100Pa 150Pa
PEFY-M20, 25VMA(L)-A 18-22-24 - 20-23-26 19-24-27 21-27-30 25-31-35
PEFY-M32VMA(L)-A 20-24-27 - 21-25-30 22-27-31 24-29-32 28-32-36
PEFY-M40VMA(L)-A 20-25-28 - 21-28-30 24-28-32 26-30-34 29-34-38
PEFY-M50VMA(L)-A 21-28-31 - 25-29-33 25-30-35 28-33-37 30-35-39
PEFY-M63VMA(L)-A 24-28-32 - 27-30-35 27-32-36 29-34-38 32-37-41
PEFY-M71, 80VMA(L)-A - 22-28-31 26-29-32 26-30-34 27-32-36 30-36-39
PEFY-M100VMA(L)-A - 27-32-35 28-33-36 30-35-38 32-37-40 34-40-43
PEFY-M125VMA(L)-A - 30-34-36 31-35-37 31-36-38 32-37-39 35-40-42
PEFY-M140VMA(L)-A - 30-34-36 30-34-37 31-35-37 32-36-39 34-38-42
* Measured in anechoic room.
PEFY-M-VMA(L)-A
2m 1m
Aux. duct
1.5m
Measurement location
Measurement location
Aux. duct
* Measured in anechoic room.
PEFY-M-VMA(L)-A
2m 2m
1.5m
0000006347.BOOK 18 ページ 2021年7月13日 火曜日 午前9時52分
MEES21K075
PEFY-M-VMA(L)-A
19
5. SOUND LEVELS Ceiling concealed (Medium static pressure type)
5-2. NC curves
5-2-1. NC curves (Sound level measured point: With 1m air inlet duct and 2m air outlet duct)
50
Power Source: 220-240V
External Static Pressure: 35Pa [0.14in.WG]
PEFY-M20,25VMA(L)-A
50Hz
50Hz
Low
50Hz
Middle
High
Octave band center frequencies (Hz)
20
-
NC
30
-
NC
40
-
NC
continuous noise
audible limit on
Approximate minimum
Octave
band
pressure
level
(dB)
0dB=20μPa
-
NC
60
-
NC
8k
4k
2k
1k
500
250
125
63
70.0
65.0
60.0
55.0
50.0
45.0
40.0
35.0
30.0
25.0
20.0
15.0
10.0
5.0
50
Power Source: 220-240V
External Static Pressure: 50Pa [0.20in.WG]
PEFY-M20,25VMA(L)-A
50Hz
50Hz
Low
50Hz
Middle
High
Octave band center frequencies (Hz)
20
-
NC
30
-
NC
40
-
NC
continuous noise
audible limit on
Approximate minimum
Octave
band
pressure
level
(dB)
0dB=20μPa
-
NC
60
-
NC
8k
4k
2k
1k
500
250
125
63
70.0
65.0
60.0
55.0
50.0
45.0
40.0
35.0
30.0
25.0
20.0
15.0
10.0
5.0
50
Power Source: 220-240V
External Static Pressure: 70Pa [0.28in.WG]
PEFY-M20,25VMA(L)-A
50Hz
50Hz
Low
50Hz
Middle
High
Octave band center frequencies (Hz)
20
-
NC
30
-
NC
40
-
NC
continuous noise
audible limit on
Approximate minimum
Octave
band
pressure
level
(dB)
0dB=20μPa
-
NC
60
-
NC
8k
4k
2k
1k
500
250
125
63
70.0
65.0
60.0
55.0
50.0
45.0
40.0
35.0
30.0
25.0
20.0
15.0
10.0
5.0
50
Power Source: 220-240V
External Static Pressure: 100Pa [0.40in.WG]
PEFY-M20,25VMA(L)-A
50Hz
50Hz
Low
50Hz
Middle
High
Octave band center frequencies (Hz)
20
-
NC
30
-
NC
40
-
NC
continuous noise
audible limit on
Approximate minimum
Octave
band
pressure
level
(dB)
0dB=20μPa
-
NC
60
-
NC
8k
4k
2k
1k
500
250
125
63
70.0
65.0
60.0
55.0
50.0
45.0
40.0
35.0
30.0
25.0
20.0
15.0
10.0
5.0
50
Power Source: 220-240V
External Static Pressure: 150Pa [0.60in.WG]
PEFY-M20,25VMA(L)-A
50Hz
50Hz
Low
50Hz
Middle
High
Octave band center frequencies (Hz)
20
-
NC
30
-
NC
40
-
NC
continuous noise
audible limit on
Approximate minimum
Octave
band
pressure
level
(dB)
0dB=20μPa
-
NC
60
-
NC
8k
4k
2k
1k
500
250
125
63
70.0
65.0
60.0
55.0
50.0
45.0
40.0
35.0
30.0
25.0
20.0
15.0
10.0
5.0
50
Power Source: 220-240V
External Static Pressure: 35Pa [0.14in.WG]
PEFY-M32VMA(L)-A
50Hz
50Hz
Low
50Hz
Middle
High
Octave band center frequencies (Hz)
20
-
NC
30
-
NC
40
-
NC
continuous noise
audible limit on
Approximate minimum
Octave
band
pressure
level
(dB)
0dB=20μPa
-
NC
60
-
NC
8k
4k
2k
1k
500
250
125
63
70.0
65.0
60.0
55.0
50.0
45.0
40.0
35.0
30.0
25.0
20.0
15.0
10.0
5.0
50
Power Source: 220-240V
External Static Pressure: 50Pa [0.20in.WG]
PEFY-M32VMA(L)-A
50Hz
50Hz
Low
50Hz
Middle
High
Octave band center frequencies (Hz)
20
-
NC
30
-
NC
40
-
NC
continuous noise
audible limit on
Approximate minimum
Octave
band
pressure
level
(dB)
0dB=20μPa
-
NC
60
-
NC
8k
4k
2k
1k
500
250
125
63
70.0
65.0
60.0
55.0
50.0
45.0
40.0
35.0
30.0
25.0
20.0
15.0
10.0
5.0
50
Power Source: 220-240V
External Static Pressure: 70Pa [0.28in.WG]
PEFY-M32VMA(L)-A
50Hz
50Hz
Low
50Hz
Middle
High
Octave band center frequencies (Hz)
20
-
NC
30
-
NC
40
-
NC
continuous noise
audible limit on
Approximate minimum
Octave
band
pressure
level
(dB)
0dB=20μPa
-
NC
60
-
NC
8k
4k
2k
1k
500
250
125
63
70.0
65.0
60.0
55.0
50.0
45.0
40.0
35.0
30.0
25.0
20.0
15.0
10.0
5.0
50
Power Source: 220-240V
External Static Pressure: 100Pa [0.40in.WG]
PEFY-M32VMA(L)-A
50Hz
50Hz
Low
50Hz
Middle
High
Octave band center frequencies (Hz)
20
-
NC
30
-
NC
40
-
NC
continuous noise
audible limit on
Approximate minimum
Octave
band
pressure
level
(dB)
0dB=20μPa
-
NC
60
-
NC
8k
4k
2k
1k
500
250
125
63
70.0
65.0
60.0
55.0
50.0
45.0
40.0
35.0
30.0
25.0
20.0
15.0
10.0
5.0
50
Power Source: 220-240V
External Static Pressure: 150Pa [0.60in.WG]
PEFY-M32VMA(L)-A
50Hz
50Hz
Low
50Hz
Middle
High
Octave band center frequencies (Hz)
20
-
NC
30
-
NC
40
-
NC
continuous noise
audible limit on
Approximate minimum
Octave
band
pressure
level
(dB)
0dB=20μPa
-
NC
60
-
NC
8k
4k
2k
1k
500
250
125
63
70.0
65.0
60.0
55.0
50.0
45.0
40.0
35.0
30.0
25.0
20.0
15.0
10.0
5.0
50
Power Source: 220-240V
External Static Pressure: 35Pa [0.14in.WG]
PEFY-M40VMA(L)-A
50Hz
50Hz
Low
50Hz
Middle
High
Octave band center frequencies (Hz)
20
-
NC
30
-
NC
40
-
NC
continuous noise
audible limit on
Approximate minimum
Octave
band
pressure
level
(dB)
0dB=20μPa
-
NC
60
-
NC
8k
4k
2k
1k
500
250
125
63
70.0
65.0
60.0
55.0
50.0
45.0
40.0
35.0
30.0
25.0
20.0
15.0
10.0
5.0
50
Power Source: 220-240V
External Static Pressure: 50Pa [0.20in.WG]
PEFY-M40VMA(L)-A
50Hz
50Hz
Low
50Hz
Middle
High
Octave band center frequencies (Hz)
20
-
NC
30
-
NC
40
-
NC
continuous noise
audible limit on
Approximate minimum
Octave
band
pressure
level
(dB)
0dB=20μPa
-
NC
60
-
NC
8k
4k
2k
1k
500
250
125
63
70.0
65.0
60.0
55.0
50.0
45.0
40.0
35.0
30.0
25.0
20.0
15.0
10.0
5.0
0000006347.BOOK 19 ページ 2021年7月13日 火曜日 午前9時52分
MEES21K075
PEFY-M-VMA(L)-A
20
5. SOUND LEVELS Ceiling concealed (Medium static pressure type)
50
Power Source: 220-240V
External Static Pressure: 70Pa [0.28in.WG]
PEFY-M40VMA(L)-A
50Hz
50Hz
Low
50Hz
Middle
High
Octave band center frequencies (Hz)
20
-
NC
30
-
NC
40
-
NC
continuous noise
audible limit on
Approximate minimum
Octave
band
pressure
level
(dB)
0dB=20μPa
-
NC
60
-
NC
8k
4k
2k
1k
500
250
125
63
70.0
65.0
60.0
55.0
50.0
45.0
40.0
35.0
30.0
25.0
20.0
15.0
10.0
5.0
50
Power Source: 220-240V
External Static Pressure: 100Pa [0.40in.WG]
PEFY-M40VMA(L)-A
50Hz
50Hz
Low
50Hz
Middle
High
Octave band center frequencies (Hz)
20
-
NC
30
-
NC
40
-
NC
continuous noise
audible limit on
Approximate minimum
Octave
band
pressure
level
(dB)
0dB=20μPa
-
NC
60
-
NC
8k
4k
2k
1k
500
250
125
63
70.0
65.0
60.0
55.0
50.0
45.0
40.0
35.0
30.0
25.0
20.0
15.0
10.0
5.0
50
Power Source: 220-240V
External Static Pressure: 150Pa [0.60in.WG]
PEFY-M40VMA(L)-A
50Hz
50Hz
Low
50Hz
Middle
High
Octave band center frequencies (Hz)
20
-
NC
30
-
NC
40
-
NC
continuous noise
audible limit on
Approximate minimum
Octave
band
pressure
level
(dB)
0dB=20μPa
-
NC
60
-
NC
8k
4k
2k
1k
500
250
125
63
70.0
65.0
60.0
55.0
50.0
45.0
40.0
35.0
30.0
25.0
20.0
15.0
10.0
5.0
50
Power Source: 220-240V
External Static Pressure: 35Pa [0.14in.WG]
PEFY-M50VMA(L)-A
50Hz
50Hz
Low
50Hz
Middle
High
Octave band center frequencies (Hz)
20
-
NC
30
-
NC
40
-
NC
continuous noise
audible limit on
Approximate minimum
Octave
band
pressure
level
(dB)
0dB=20μPa
-
NC
60
-
NC
8k
4k
2k
1k
500
250
125
63
70.0
65.0
60.0
55.0
50.0
45.0
40.0
35.0
30.0
25.0
20.0
15.0
10.0
5.0
50
Power Source: 220-240V
External Static Pressure: 50Pa [0.20in.WG]
PEFY-M50VMA(L)-A
50Hz
50Hz
Low
50Hz
Middle
High
Octave band center frequencies (Hz)
20
-
NC
30
-
NC
40
-
NC
continuous noise
audible limit on
Approximate minimum
Octave
band
pressure
level
(dB)
0dB=20μPa
-
NC
60
-
NC
8k
4k
2k
1k
500
250
125
63
70.0
65.0
60.0
55.0
50.0
45.0
40.0
35.0
30.0
25.0
20.0
15.0
10.0
5.0
50
Power Source: 220-240V
External Static Pressure: 70Pa [0.28in.WG]
PEFY-M50VMA(L)-A
50Hz
50Hz
Low
50Hz
Middle
High
Octave band center frequencies (Hz)
20
-
NC
30
-
NC
40
-
NC
continuous noise
audible limit on
Approximate minimum
Octave
band
pressure
level
(dB)
0dB=20μPa
-
NC
60
-
NC
8k
4k
2k
1k
500
250
125
63
70.0
65.0
60.0
55.0
50.0
45.0
40.0
35.0
30.0
25.0
20.0
15.0
10.0
5.0
50
Power Source: 220-240V
External Static Pressure: 100Pa [0.40in.WG]
PEFY-M50VMA(L)-A
50Hz
50Hz
Low
50Hz
Middle
High
Octave band center frequencies (Hz)
20
-
NC
30
-
NC
40
-
NC
continuous noise
audible limit on
Approximate minimum
Octave
band
pressure
level
(dB)
0dB=20μPa
-
NC
60
-
NC
8k
4k
2k
1k
500
250
125
63
70.0
65.0
60.0
55.0
50.0
45.0
40.0
35.0
30.0
25.0
20.0
15.0
10.0
5.0
50
Power Source: 220-240V
External Static Pressure: 150Pa [0.60in.WG]
PEFY-M50VMA(L)-A
50Hz
50Hz
Low
50Hz
Middle
High
Octave band center frequencies (Hz)
20
-
NC
30
-
NC
40
-
NC
continuous noise
audible limit on
Approximate minimum
Octave
band
pressure
level
(dB)
0dB=20μPa
-
NC
60
-
NC
8k
4k
2k
1k
500
250
125
63
70.0
65.0
60.0
55.0
50.0
45.0
40.0
35.0
30.0
25.0
20.0
15.0
10.0
5.0
50
Power Source: 220-240V
External Static Pressure: 35Pa [0.14in.WG]
PEFY-M63VMA(L)-A
50Hz
50Hz
Low
50Hz
Middle
High
Octave band center frequencies (Hz)
20
-
NC
30
-
NC
40
-
NC
continuous noise
audible limit on
Approximate minimum
Octave
band
pressure
level
(dB)
0dB=20μPa
-
NC
60
-
NC
8k
4k
2k
1k
500
250
125
63
70.0
65.0
60.0
55.0
50.0
45.0
40.0
35.0
30.0
25.0
20.0
15.0
10.0
5.0
50
Power Source: 220-240V
External Static Pressure: 50Pa [0.20in.WG]
PEFY-M63VMA(L)-A
50Hz
50Hz
Low
50Hz
Middle
High
Octave band center frequencies (Hz)
20
-
NC
30
-
NC
40
-
NC
continuous noise
audible limit on
Approximate minimum
Octave
band
pressure
level
(dB)
0dB=20μPa
-
NC
60
-
NC
8k
4k
2k
1k
500
250
125
63
70.0
65.0
60.0
55.0
50.0
45.0
40.0
35.0
30.0
25.0
20.0
15.0
10.0
5.0
50
Power Source: 220-240V
External Static Pressure: 70Pa [0.28in.WG]
PEFY-M63VMA(L)-A
50Hz
50Hz
Low
50Hz
Middle
High
Octave band center frequencies (Hz)
20
-
NC
30
-
NC
40
-
NC
continuous noise
audible limit on
Approximate minimum
Octave
band
pressure
level
(dB)
0dB=20μPa
-
NC
60
-
NC
8k
4k
2k
1k
500
250
125
63
70.0
65.0
60.0
55.0
50.0
45.0
40.0
35.0
30.0
25.0
20.0
15.0
10.0
5.0
50
Power Source: 220-240V
External Static Pressure: 100Pa [0.40in.WG]
PEFY-M63VMA(L)-A
50Hz
50Hz
Low
50Hz
Middle
High
Octave band center frequencies (Hz)
20
-
NC
30
-
NC
40
-
NC
continuous noise
audible limit on
Approximate minimum
Octave
band
pressure
level
(dB)
0dB=20μPa
-
NC
60
-
NC
8k
4k
2k
1k
500
250
125
63
70.0
65.0
60.0
55.0
50.0
45.0
40.0
35.0
30.0
25.0
20.0
15.0
10.0
5.0
0000006347.BOOK 20 ページ 2021年7月13日 火曜日 午前9時52分
MEES21K075
PEFY-M-VMA(L)-A
21
5. SOUND LEVELS Ceiling concealed (Medium static pressure type)
50
Power Source: 220-240V
External Static Pressure: 150Pa [0.60in.WG]
PEFY-M63VMA(L)-A
50Hz
50Hz
Low
50Hz
Middle
High
Octave band center frequencies (Hz)
20
-
NC
30
-
NC
40
-
NC
continuous noise
audible limit on
Approximate minimum
Octave
band
pressure
level
(dB)
0dB=20μPa
-
NC
60
-
NC
8k
4k
2k
1k
500
250
125
63
70.0
65.0
60.0
55.0
50.0
45.0
40.0
35.0
30.0
25.0
20.0
15.0
10.0
5.0
50
Power Source: 220-240V
External Static Pressure: 40Pa [0.16in.WG]
PEFY-M71,80VMA(L)-A
50Hz
50Hz
Low
50Hz
Middle
High
Octave band center frequencies (Hz)
20
-
NC
30
-
NC
40
-
NC
continuous noise
audible limit on
Approximate minimum
Octave
band
pressure
level
(dB)
0dB=20μPa
-
NC
60
-
NC
8k
4k
2k
1k
500
250
125
63
70.0
65.0
60.0
55.0
50.0
45.0
40.0
35.0
30.0
25.0
20.0
15.0
10.0
5.0
50
Power Source: 220-240V
External Static Pressure: 50Pa [0.20in.WG]
PEFY-M71,80VMA(L)-A
50Hz
50Hz
Low
50Hz
Middle
High
Octave band center frequencies (Hz)
20
-
NC
30
-
NC
40
-
NC
continuous noise
audible limit on
Approximate minimum
Octave
band
pressure
level
(dB)
0dB=20μPa
-
NC
60
-
NC
8k
4k
2k
1k
500
250
125
63
70.0
65.0
60.0
55.0
50.0
45.0
40.0
35.0
30.0
25.0
20.0
15.0
10.0
5.0
50
Power Source: 220-240V
External Static Pressure: 70Pa [0.28in.WG]
PEFY-M71,80VMA(L)-A
50Hz
50Hz
Low
50Hz
Middle
High
Octave band center frequencies (Hz)
20
-
NC
30
-
NC
40
-
NC
continuous noise
audible limit on
Approximate minimum
Octave
band
pressure
level
(dB)
0dB=20μPa
-
NC
60
-
NC
8k
4k
2k
1k
500
250
125
63
70.0
65.0
60.0
55.0
50.0
45.0
40.0
35.0
30.0
25.0
20.0
15.0
10.0
5.0
50
Power Source: 220-240V
External Static Pressure: 100Pa [0.40in.WG]
PEFY-M71,80VMA(L)-A
50Hz
50Hz
Low
50Hz
Middle
High
Octave band center frequencies (Hz)
20
-
NC
30
-
NC
40
-
NC
continuous noise
audible limit on
Approximate minimum
Octave
band
pressure
level
(dB)
0dB=20μPa
-
NC
60
-
NC
8k
4k
2k
1k
500
250
125
63
70.0
65.0
60.0
55.0
50.0
45.0
40.0
35.0
30.0
25.0
20.0
15.0
10.0
5.0
50
Power Source: 220-240V
External Static Pressure: 150Pa [0.60in.WG]
PEFY-M71,80VMA(L)-A
50Hz
50Hz
Low
50Hz
Middle
High
Octave band center frequencies (Hz)
20
-
NC
30
-
NC
40
-
NC
continuous noise
audible limit on
Approximate minimum
Octave
band
pressure
level
(dB)
0dB=20μPa
-
NC
60
-
NC
8k
4k
2k
1k
500
250
125
63
70.0
65.0
60.0
55.0
50.0
45.0
40.0
35.0
30.0
25.0
20.0
15.0
10.0
5.0
50
Power Source: 220-240V
External Static Pressure: 40Pa [0.16in.WG]
PEFY-M100VMA(L)-A
50Hz
50Hz
Low
50Hz
Middle
High
Octave band center frequencies (Hz)
20
-
NC
30
-
NC
40
-
NC
continuous noise
audible limit on
Approximate minimum
Octave
band
pressure
level
(dB)
0dB=20μPa
-
NC
60
-
NC
8k
4k
2k
1k
500
250
125
63
70.0
65.0
60.0
55.0
50.0
45.0
40.0
35.0
30.0
25.0
20.0
15.0
10.0
5.0
50
Power Source: 220-240V
External Static Pressure: 50Pa [0.20in.WG]
PEFY-M100VMA(L)-A
50Hz
50Hz
Low
50Hz
Middle
High
Octave band center frequencies (Hz)
20
-
NC
30
-
NC
40
-
NC
continuous noise
audible limit on
Approximate minimum
Octave
band
pressure
level
(dB)
0dB=20μPa
-
NC
60
-
NC
8k
4k
2k
1k
500
250
125
63
70.0
65.0
60.0
55.0
50.0
45.0
40.0
35.0
30.0
25.0
20.0
15.0
10.0
5.0
50
Power Source: 220-240V
External Static Pressure: 70Pa [0.28in.WG]
PEFY-M100VMA(L)-A
50Hz
50Hz
Low
50Hz
Middle
High
Octave band center frequencies (Hz)
20
-
NC
30
-
NC
40
-
NC
continuous noise
audible limit on
Approximate minimum
Octave
band
pressure
level
(dB)
0dB=20μPa
-
NC
60
-
NC
8k
4k
2k
1k
500
250
125
63
70.0
65.0
60.0
55.0
50.0
45.0
40.0
35.0
30.0
25.0
20.0
15.0
10.0
5.0
50
Power Source: 220-240V
External Static Pressure: 100Pa [0.40in.WG]
PEFY-M100VMA(L)-A
50Hz
50Hz
Low
50Hz
Middle
High
Octave band center frequencies (Hz)
20
-
NC
30
-
NC
40
-
NC
continuous noise
audible limit on
Approximate minimum
Octave
band
pressure
level
(dB)
0dB=20μPa
-
NC
60
-
NC
8k
4k
2k
1k
500
250
125
63
70.0
65.0
60.0
55.0
50.0
45.0
40.0
35.0
30.0
25.0
20.0
15.0
10.0
5.0
50
Power Source: 220-240V
External Static Pressure: 150Pa [0.60in.WG]
PEFY-M100VMA(L)-A
50Hz
50Hz
Low
50Hz
Middle
High
Octave band center frequencies (Hz)
20
-
NC
30
-
NC
40
-
NC
continuous noise
audible limit on
Approximate minimum
Octave
band
pressure
level
(dB)
0dB=20μPa
-
NC
60
-
NC
8k
4k
2k
1k
500
250
125
63
70.0
65.0
60.0
55.0
50.0
45.0
40.0
35.0
30.0
25.0
20.0
15.0
10.0
5.0
50
Power Source: 220-240V
External Static Pressure: 40Pa [0.16in.WG]
PEFY-M125VMA(L)-A
50Hz
50Hz
Low
50Hz
Middle
High
Octave band center frequencies (Hz)
20
-
NC
30
-
NC
40
-
NC
continuous noise
audible limit on
Approximate minimum
Octave
band
pressure
level
(dB)
0dB=20μPa
-
NC
60
-
NC
8k
4k
2k
1k
500
250
125
63
70.0
65.0
60.0
55.0
50.0
45.0
40.0
35.0
30.0
25.0
20.0
15.0
10.0
5.0
0000006347.BOOK 21 ページ 2021年7月13日 火曜日 午前9時52分
MEES21K075
PEFY-M-VMA(L)-A
22
5. SOUND LEVELS Ceiling concealed (Medium static pressure type)
50
Power Source: 220-240V
External Static Pressure: 50Pa [0.20in.WG]
PEFY-M125VMA(L)-A
50Hz
50Hz
Low
50Hz
Middle
High
Octave band center frequencies (Hz)
20
-
NC
30
-
NC
40
-
NC
continuous noise
audible limit on
Approximate minimum
Octave
band
pressure
level
(dB)
0dB=20μPa
-
NC
60
-
NC
8k
4k
2k
1k
500
250
125
63
70.0
65.0
60.0
55.0
50.0
45.0
40.0
35.0
30.0
25.0
20.0
15.0
10.0
5.0
50
Power Source: 220-240V
External Static Pressure: 70Pa [0.28in.WG]
PEFY-M125VMA(L)-A
50Hz
50Hz
Low
50Hz
Middle
High
Octave band center frequencies (Hz)
20
-
NC
30
-
NC
40
-
NC
continuous noise
audible limit on
Approximate minimum
Octave
band
pressure
level
(dB)
0dB=20μPa
-
NC
60
-
NC
8k
4k
2k
1k
500
250
125
63
70.0
65.0
60.0
55.0
50.0
45.0
40.0
35.0
30.0
25.0
20.0
15.0
10.0
5.0
50
Power Source: 220-240V
External Static Pressure: 100Pa [0.40in.WG]
PEFY-M125VMA(L)-A
50Hz
50Hz
Low
50Hz
Middle
High
Octave band center frequencies (Hz)
20
-
NC
30
-
NC
40
-
NC
continuous noise
audible limit on
Approximate minimum
Octave
band
pressure
level
(dB)
0dB=20μPa
-
NC
60
-
NC
8k
4k
2k
1k
500
250
125
63
70.0
65.0
60.0
55.0
50.0
45.0
40.0
35.0
30.0
25.0
20.0
15.0
10.0
5.0
50
Power Source: 220-240V
External Static Pressure: 150Pa [0.60in.WG]
PEFY-M125VMA(L)-A
50Hz
50Hz
Low
50Hz
Middle
High
Octave band center frequencies (Hz)
20
-
NC
30
-
NC
40
-
NC
continuous noise
audible limit on
Approximate minimum
Octave
band
pressure
level
(dB)
0dB=20μPa
-
NC
60
-
NC
8k
4k
2k
1k
500
250
125
63
70.0
65.0
60.0
55.0
50.0
45.0
40.0
35.0
30.0
25.0
20.0
15.0
10.0
5.0
50
Power Source: 220-240V
External Static Pressure: 40Pa [0.16in.WG]
PEFY-M140VMA(L)-A
50Hz
50Hz
Low
50Hz
Middle
High
Octave band center frequencies (Hz)
20
-
NC
30
-
NC
40
-
NC
continuous noise
audible limit on
Approximate minimum
Octave
band
pressure
level
(dB)
0dB=20μPa
-
NC
60
-
NC
8k
4k
2k
1k
500
250
125
63
70.0
65.0
60.0
55.0
50.0
45.0
40.0
35.0
30.0
25.0
20.0
15.0
10.0
5.0
50
Power Source: 220-240V
External Static Pressure: 50Pa [0.20in.WG]
PEFY-M140VMA(L)-A
50Hz
50Hz
Low
50Hz
Middle
High
Octave band center frequencies (Hz)
20
-
NC
30
-
NC
40
-
NC
continuous noise
audible limit on
Approximate minimum
Octave
band
pressure
level
(dB)
0dB=20μPa
-
NC
60
-
NC
8k
4k
2k
1k
500
250
125
63
70.0
65.0
60.0
55.0
50.0
45.0
40.0
35.0
30.0
25.0
20.0
15.0
10.0
5.0
50
Power Source: 220-240V
External Static Pressure: 70Pa [0.28in.WG]
PEFY-M140VMA(L)-A
50Hz
50Hz
Low
50Hz
Middle
High
Octave band center frequencies (Hz)
20
-
NC
30
-
NC
40
-
NC
continuous noise
audible limit on
Approximate minimum
Octave
band
pressure
level
(dB)
0dB=20μPa
-
NC
60
-
NC
8k
4k
2k
1k
500
250
125
63
70.0
65.0
60.0
55.0
50.0
45.0
40.0
35.0
30.0
25.0
20.0
15.0
10.0
5.0
50
Power Source: 220-240V
External Static Pressure: 100Pa [0.40in.WG]
PEFY-M140VMA(L)-A
50Hz
50Hz
Low
50Hz
Middle
High
Octave band center frequencies (Hz)
20
-
NC
30
-
NC
40
-
NC
continuous noise
audible limit on
Approximate minimum
Octave
band
pressure
level
(dB)
0dB=20μPa
-
NC
60
-
NC
8k
4k
2k
1k
500
250
125
63
70.0
65.0
60.0
55.0
50.0
45.0
40.0
35.0
30.0
25.0
20.0
15.0
10.0
5.0
50
Power Source: 220-240V
External Static Pressure: 150Pa [0.60in.WG]
PEFY-M140VMA(L)-A
50Hz
50Hz
Low
50Hz
Middle
High
Octave band center frequencies (Hz)
20
-
NC
30
-
NC
40
-
NC
continuous noise
audible limit on
Approximate minimum
Octave
band
pressure
level
(dB)
0dB=20μPa
-
NC
60
-
NC
8k
4k
2k
1k
500
250
125
63
70.0
65.0
60.0
55.0
50.0
45.0
40.0
35.0
30.0
25.0
20.0
15.0
10.0
5.0
0000006347.BOOK 22 ページ 2021年7月13日 火曜日 午前9時52分
MEES21K075
PEFY-M-VMA(L)-A
23
6. FAN CHARACTERISTICS CURVES Ceiling concealed (Medium static pressure type)
6. FAN CHARACTERISTICS CURVES
PEFY-M20, 25VMA(L)-A
External static pressure : 50Pa
Power source : 220-240V
PEFY-M20, 25VMA(L)-A
External static pressure : 35Pa
Power source : 220-240V
PEFY-M20, 25VMA(L)-A
External static pressure : 100Pa
Power source : 220-240V
PEFY-M20, 25VMA(L)-A
External static pressure : 70Pa
Power source : 220-240V
PEFY-M20, 25VMA(L)-A
External static pressure : 150Pa
Power source : 220-240V
Airflow rate (m3
/min)
External
static
pressure
(Pa)
0
20
40
60
5 7 9 11 5 7 9 11
5 7 9 11 5 7 9 11
5 7 9 11
Airflow rate (m3
/min)
External
static
pressure
(Pa)
0
40
20
60
80
Airflow rate (m3
/min)
External
static
pressure
(Pa)
0
60
40
80
100
Airflow rate (m3
/min)
External
static
pressure
(Pa)
0
80
100
40
60
20
120
Airflow rate (m3
/min)
External
static
pressure
(Pa)
0
140
120
100
80
60
40
20
160
180
20
High
Middle
Low
Limit
High
Middle
Low
Limit
High
Middle
Low
Limit
High
Middle
Low
Limit
High
Middle
Low
Limit
Limit
Limit
Limit
Limit
Limit
Plasma Quad Connect
Plasma Quad Connect
Plasma Quad Connect Plasma Quad Connect
Plasma Quad Connect
0000006347.BOOK 23 ページ 2021年7月13日 火曜日 午前9時52分
MEES21K075
PEFY-M-VMA(L)-A
24
6. FAN CHARACTERISTICS CURVES Ceiling concealed (Medium static pressure type)
PEFY-M32VMA(L)-A
External static pressure : 50Pa
Power source : 220-240V
PEFY-M32VMA(L)-A
External static pressure : 35Pa
Power source : 220-240V
PEFY-M32VMA(L)-A
External static pressure : 100Pa
Power source : 220-240V
PEFY-M32VMA(L)-A
External static pressure : 70Pa
Power source : 220-240V
PEFY-M32VMA(L)-A
External static pressure : 150Pa
Power source : 220-240V
Airflow rate (m3
/min)
External
static
pressure
(Pa)
0
20
40
60
6 8 10 12 6 8 10 12
6 8 10 12 6 8 10 12
6 8 10 12
Airflow rate (m3
/min)
External
static
pressure
(Pa)
0
40
20
60
80
Airflow rate (m3
/min)
External
static
pressure
(Pa)
0
60
40
80
100
Airflow rate (m3
/min)
External
static
pressure
(Pa)
0
80
100
40
60
20
120
Airflow rate (m3
/min)
External
static
pressure
(Pa)
0
140
120
100
80
60
40
20
160
180
20
High
Middle
Low
Limit
High
Middle
Low
Limit
High
Middle
Low
Limit
High
Middle
Low
Limit
High
Middle
Low
Limit
Limit
Limit
Limit
Limit
Limit
Plasma Quad Connect
Plasma Quad Connect
Plasma Quad Connect Plasma Quad Connect
Plasma Quad Connect
0000006347.BOOK 24 ページ 2021年7月13日 火曜日 午前9時52分
MEES21K075
PEFY-M-VMA(L)-A
25
6. FAN CHARACTERISTICS CURVES Ceiling concealed (Medium static pressure type)
PEFY-M40VMA(L)-A
External static pressure : 50Pa
Power source : 220-240V
PEFY-M40VMA(L)-A
External static pressure : 35Pa
Power source : 220-240V
PEFY-M40VMA(L)-A
External static pressure : 100Pa
Power source : 220-240V
PEFY-M40VMA(L)-A
External static pressure : 70Pa
Power source : 220-240V
PEFY-M40VMA(L)-A
External static pressure : 150Pa
Power source : 220-240V
Airflow rate (m3
/min)
External
static
pressure
(Pa)
0
20
40
60
8 14 16
10 12 8 14 16
10 12
8 14 16
10 12 8 14 16
10 12
8 14 16
10 12
Airflow rate (m3
/min)
External
static
pressure
(Pa)
0
40
20
60
80
Airflow rate (m3
/min)
External
static
pressure
(Pa)
0
60
40
80
100
Airflow rate (m3
/min)
External
static
pressure
(Pa)
0
80
100
40
60
20
120
Airflow rate (m3
/min)
External
static
pressure
(Pa)
0
140
120
100
80
60
40
20
160
180
20
High
Middle
Low
Limit
High
Middle
Low
Limit
High
Middle
Low
Limit
High
Middle
Low
Limit
High
Middle
Low
Limit
Limit
Limit
Limit
Limit
Limit
Plasma Quad Connect Plasma Quad Connect
Plasma Quad Connect Plasma Quad Connect
Plasma Quad Connect
0000006347.BOOK 25 ページ 2021年7月13日 火曜日 午前9時52分
MEES21K075
PEFY-M-VMA(L)-A
26
6. FAN CHARACTERISTICS CURVES Ceiling concealed (Medium static pressure type)
PEFY-M50VMA(L)-A
External static pressure : 50Pa
Power source : 220-240V
PEFY-M50VMA(L)-A
External static pressure : 35Pa
Power source : 220-240V
PEFY-M50VMA(L)-A
External static pressure : 100Pa
Power source : 220-240V
PEFY-M50VMA(L)-A
External static pressure : 70Pa
Power source : 220-240V
PEFY-M50VMA(L)-A
External static pressure : 150Pa
Power source : 220-240V
Airflow rate (m3
/min)
External
static
pressure
(Pa)
0
20
40
60
8 14 16 18 20
10 12 8 14 16 18 20
10 12
8 14 16 18 20
10 12 8 14 16 18 20
10 12
8 14 16 18 20
10 12
Airflow rate (m3
/min)
External
static
pressure
(Pa)
0
40
20
60
80
Airflow rate (m3
/min)
External
static
pressure
(Pa)
0
60
40
80
100
Airflow rate (m3
/min)
External
static
pressure
(Pa)
0
80
100
40
60
20
140
120
Airflow rate (m3
/min)
External
static
pressure
(Pa)
0
140
120
100
80
60
40
20
160
180
20
High
Middle
Low
Limit
High
Middle
Low
Limit
High
Middle
Low
Limit
High
Middle
Low
Limit
High
Middle
Low
Limit
Limit
Limit
Limit
Limit
Limit
Plasma Quad Connect
Plasma Quad Connect
Plasma Quad Connect
Plasma Quad Connect
Plasma Quad Connect
0000006347.BOOK 26 ページ 2021年7月13日 火曜日 午前9時52分
MEES21K075
PEFY-M-VMA(L)-A
27
6. FAN CHARACTERISTICS CURVES Ceiling concealed (Medium static pressure type)
PEFY-M63VMA(L)-A
External static pressure : 50Pa
Power source : 220-240V
PEFY-M63VMA(L)-A
External static pressure : 35Pa
Power source : 220-240V
PEFY-M63VMA(L)-A
External static pressure : 100Pa
Power source : 220-240V
PEFY-M63VMA(L)-A
External static pressure : 70Pa
Power source : 220-240V
PEFY-M63VMA(L)-A
External static pressure : 150Pa
Power source : 220-240V
Airflow rate (m3
/min)
External
static
pressure
(Pa)
0
20
40
60
11 17 19 21 23
13 15 11 17 19 21 23
13 15
11 17 19 21 23
13 15 11 17 19 21 23
13 15
11 17 19 21 23
13 15
Airflow rate (m3
/min)
External
static
pressure
(Pa)
0
40
20
60
80
Airflow rate (m3
/min)
External
static
pressure
(Pa)
0
60
40
80
100
Airflow rate (m3
/min)
External
static
pressure
(Pa)
0
80
100
40
60
20
140
120
Airflow rate (m3
/min)
External
static
pressure
(Pa)
0
140
120
100
80
60
40
20
160
180
20
High
Middle
Low
Limit
High
Middle
Low
Limit
High
Middle
Low
Limit
High
Middle
Low
Limit
High
Middle
Low
Limit
Limit
Limit
Limit
Limit
Limit
Plasma Quad Connect
Plasma Quad
Connect Plasma Quad Connect
Plasma Quad Connect
Plasma Quad Connect
0000006347.BOOK 27 ページ 2021年7月13日 火曜日 午前9時52分
MEES21K075
PEFY-M-VMA(L)-A
28
6. FAN CHARACTERISTICS CURVES Ceiling concealed (Medium static pressure type)
PEFY-M71, 80VMA(L)-A
External static pressure : 50Pa
Power source : 220-240V
PEFY-M71, 80VMA(L)-A
External static pressure : 40Pa
Power source : 220-240V
PEFY-M71, 80VMA(L)-A
External static pressure : 100Pa
Power source : 220-240V
PEFY-M71, 80VMA(L)-A
External static pressure : 70Pa
Power source : 220-240V
PEFY-M71, 80VMA(L)-A
External static pressure : 150Pa
Power source : 220-240V
Airflow rate (m3
/min)
External
static
pressure
(Pa)
0
20
40
60
12 18 26
14 16 22
20 24 12 18 26
14 16 22
20 24
12 18 26
14 16 22
20 24 12 18 26
14 16 22
20 24
12 18 26
14 16 22
20 24
Airflow rate (m3
/min)
External
static
pressure
(Pa)
0
40
20
60
80
Airflow rate (m3
/min)
External
static
pressure
(Pa)
0
60
40
80
100
Airflow rate (m3
/min)
External
static
pressure
(Pa)
0
80
100
40
60
20
120
Airflow rate (m3
/min)
External
static
pressure
(Pa)
0
140
120
100
80
60
40
20
160
180
20
High
Middle
Low
Limit
High
Middle
Low
Limit
High
Middle
Low
Limit
High
Middle
Low
Limit
High
Middle
Low
Limit
Limit
Limit
Limit
Limit
Limit
Plasma Quad Connect Plasma Quad Connect
Plasma Quad Connect
Plasma Quad Connect
Plasma Quad Connect
0000006347.BOOK 28 ページ 2021年7月13日 火曜日 午前9時52分
MEES21K075
PEFY-M-VMA(L)-A
29
6. FAN CHARACTERISTICS CURVES Ceiling concealed (Medium static pressure type)
PEFY-M100VMA(L)-A
External static pressure : 50Pa
Power source : 220-240V
PEFY-M100VMA(L)-A
External static pressure : 40Pa
Power source : 220-240V
PEFY-M100VMA(L)-A
External static pressure : 100Pa
Power source : 220-240V
PEFY-M100VMA(L)-A
External static pressure : 70Pa
Power source : 220-240V
PEFY-M100VMA(L)-A
External static pressure : 150Pa
Power source : 220-240V
Airflow rate (m3
/min)
External
static
pressure
(Pa)
19 25 27 29 31 33 35 37 39
21 23 19 25 27 29 31 33 35 37 39
21 23
19 25 27 29 31 33 35 37 39
21 23 19 25 27 29 31 33 35 37 39
21 23
19 25 27 29 31 33 35 37 39
21 23
Airflow rate (m3
/min)
External
static
pressure
(Pa)
0
40
20
60
80
0
40
20
60
80
Airflow rate (m3
/min)
External
static
pressure
(Pa)
0
60
40
80
100
Airflow rate (m3
/min)
External
static
pressure
(Pa)
0
80
100
40
60
20
140
120
Airflow rate (m3
/min)
External
static
pressure
(Pa)
0
140
120
100
80
60
40
20
160
180
20
High
Middle
Low
Limit
High
Middle
Low
Limit
High
Middle
Low
Limit
High
Middle
Low
Limit
High
Middle
Low
Limit
Limit
Limit
Limit
Limit
Limit
Plasma Quad Connect Plasma Quad Connect
Plasma Quad Connect
Plasma Quad Connect
Plasma Quad Connect
0000006347.BOOK 29 ページ 2021年7月13日 火曜日 午前9時52分
MEES21K075
PEFY-M-VMA(L)-A
30
6. FAN CHARACTERISTICS CURVES Ceiling concealed (Medium static pressure type)
PEFY-M125VMA(L)-A
External static pressure : 50Pa
Power source : 220-240V
PEFY-M125VMA(L)-A
External static pressure : 40Pa
Power source : 220-240V
PEFY-M125VMA(L)-A
External static pressure : 100Pa
Power source : 220-240V
PEFY-M125VMA(L)-A
External static pressure : 70Pa
Power source : 220-240V
PEFY-M125VMA(L)-A
External static pressure : 150Pa
Power source : 220-240V
Airflow rate (m3
/min)
External
static
pressure
(Pa)
0
20
40
80
60
22 28 30 32 34 36 38 40
24 26 22 28 30 32 34 36 38 40
24 26
22 28 30 32 34 36 38 40
24 26 22 28 30 32 34 36 38 40
24 26
22 28 30 32 34 36 38 40
24 26
Airflow rate (m3
/min)
External
static
pressure
(Pa)
0
40
20
60
100
80
Airflow rate (m3
/min)
External
static
pressure
(Pa)
0
60
40
80
120
100
Airflow rate (m3
/min)
External
static
pressure
(Pa)
0
80
100
40
60
20
140
120
Airflow rate (m3
/min)
External
static
pressure
(Pa)
0
140
120
100
80
60
40
20
160
200
180
20
High
Middle
Low
Limit
High
Middle
Low
Limit
High
Middle
Low
Limit
High
Middle
Low
Limit
High
Middle
Low
Limit
Limit
Limit
Limit
Limit
Limit
Plasma Quad Connect Plasma Quad Connect
Plasma Quad Connect
Plasma Quad Connect
Plasma Quad Connect
0000006347.BOOK 30 ページ 2021年7月13日 火曜日 午前9時52分
MEES21K075
PEFY-M-VMA(L)-A
31
6. FAN CHARACTERISTICS CURVES Ceiling concealed (Medium static pressure type)
PEFY-M140VMA(L)-A
External static pressure : 50Pa
Power source : 220-240V
PEFY-M140VMA(L)-A
External static pressure : 40Pa
Power source : 220-240V
PEFY-M140VMA(L)-A
External static pressure : 100Pa
Power source : 220-240V
PEFY-M140VMA(L)-A
External static pressure : 70Pa
Power source : 220-240V
PEFY-M140VMA(L)-A
External static pressure : 150Pa
Power source : 220-240V
Airflow rate (m3
/min)
External
static
pressure
(Pa)
0
20
40
80
60
28 30 32 34 36 38 40 42 44 46 48
24 26 28 30 32 34 36 38 40 42 44 46 48
24 26
28 30 32 34 36 38 40 42 44 46 48
24 26 28 30 32 34 36 38 40 42 44 46 48
24 26
28 30 32 34 36 38 40 42 44 46 48
24 26
Airflow rate (m3
/min)
External
static
pressure
(Pa)
0
40
20
60
100
80
Airflow rate (m3
/min)
External
static
pressure
(Pa)
0
60
40
80
120
100
Airflow rate (m3
/min)
External
static
pressure
(Pa)
0
80
100
40
60
20
140
120
Airflow rate (m3
/min)
External
static
pressure
(Pa)
0
140
120
100
80
60
40
20
160
200
180
20
High
Middle
Low
Limit
High
Middle
Low
Limit
High
Middle
Low
Limit
High
Middle
Low
Limit
High
Middle
Low
Limit
Limit Limit
Limit
Limit
Limit
Plasma Quad Connect Plasma Quad Connect
Plasma Quad Connect
Plasma Quad Connect
Plasma Quad Connect
0000006347.BOOK 31 ページ 2021年7月13日 火曜日 午前9時52分
MEES21K075
PEFY-M-VMA(L)-A
32
7. CAPACITY TABLES Ceiling concealed (Medium static pressure type)
7. CAPACITY TABLES
7-1. Correction by fan speed
Cooling
Heating
Ratio of air volume
Ratio
of
cooling
capacity
Ratio
of
heating
capacity
Ratio of air volume
0.80
0.85
0.90
0.95
1.00
1.05
0.75 0.80 0.85 0.90 0.95 1.00 1.05 1.10
0.70
0.80
0.85
0.90
0.95
1.00
1.05
0.75 0.80 0.85 0.90 0.95 1.00 1.05 1.10
0.70
0000006347.BOOK 32 ページ 2021年7月13日 火曜日 午前9時52分
MEES21K075
PEFY-M-VMA(L)-A
33
8. ELECTRICAL CHARACTERISTICS Ceiling concealed (Medium static pressure type)
8. ELECTRICAL CHARACTERISTICS
Symbols: MCA (Max.Circuit Amps =1.25xFLA), FLA (Full Load Amps)
IFM (Indoor Fan Motor), Output (Fan motor rated output)
PEFY-M-VMA(L)-A
Power supply IFM
Volts/Hz Range +-10% MCA (A) Output (kW) FLA (A)
PEFY-M20VMA(L)-A
220-240V/50Hz
220-240V/60Hz
Max.: 264V
Min.: 198V
0.93 0.085 0.74
PEFY-M25VMA(L)-A 0.93 0.085 0.74
PEFY-M32VMA(L)-A 1.19 0.085 0.95
PEFY-M40VMA(L)-A 1.45 0.121 1.16
PEFY-M50VMA(L)-A 1.55 0.121 1.24
PEFY-M63VMA(L)-A 1.69 0.121 1.35
PEFY-M71VMA(L)-A 2.31 0.121 1.85
PEFY-M80VMA(L)-A 2.38 0.121 1.90
PEFY-M100VMA(L)-A 2.81 0.300 2.25
PEFY-M125VMA(L)-A 2.93 0.300 2.34
PEFY-M140VMA(L)-A 3.29 0.300 2.63
0000006347.BOOK 33 ページ 2021年7月13日 火曜日 午前9時52分
MEES21K075
PEFY-M-VMA(L)-A
34
9. OPTIONAL PARTS Ceiling concealed (Medium static pressure type)
9. OPTIONAL PARTS
9-1. Optional parts line up for the Indoor unit
9-2. Filter box
PEFY-M20, 25, 32VMA(L)-A
PEFY-M40, 50, 63VMA(L)-A
PEFY-M71, 80VMA(L)-A
PEFY-M100, 125VMA(L)-A
PEFY-M140VMA(L)-A
Filter box
PAC-KE91TB-E
PAC-KE92TB-E
PAC-KE93TB-E
PAC-KE94TB-E
PAC-KE95TB-E
PEFY-M-VMA(L)-A
Plasma Quad Connect
MAC-100FT-E
MAC-100FT-E
MAC-100FT-E
MAC-100FT-E
MAC-100FT-E
PQ attachment (Rear inlet)
PAC-HA31PAR
PAC-HA31PAR
PAC-HA31PAR
PAC-HA31PAR
PAC-HA31PAR
PQ attachment (Bottom inlet)
PAC-HA31PAU
PAC-HA31PAU
PAC-HA31PAU
PAC-HA31PAU
PAC-HA31PAU
PQ box
PAC-KE91PTB-E
PAC-KE92PTB-E
PAC-KE93PTB-E
PAC-KE94PTB-E
PAC-KE95PTB-E
Filter box
PAC-KE·TB-E
PAC-KE-TB-E
Item Screw Filter box Installation manual
Quantity 30 1
FLANGE
1 1
Shape
Detailed installation information should be referred to its Installation Manual.
1 2 3 4
0000006347.BOOK 34 ページ 2021年7月13日 火曜日 午前9時52分
MEES21K075
PEFY-M-VMA(L)-A
35
9. OPTIONAL PARTS Ceiling concealed (Medium static pressure type)
9-3. Plasma Quad Connect
Static pressure loss is referred to 6 “FAN CHARACTERISTICS CURVES”.
Plasma Quad Connect (MAC-100FT-E) should be used together with PQ box or PQ attachment (PAC-HA31PAR or PAC-HA31PAU).
*Attaching the Plasma Quad Connect increases the pressure loss. Adjust the external static pressure setting as necessary. For the adjustment procedure, see
the Installation Manual for the indoor unit.
Plasma Quad Connect (MAC-100FT-E)
Item Plasma Quad Connect (with connecting cable) Installation plate
Fixing screw for Plasma Quad Connect and
Installation plate 4 × 25 mm
Quantity 1 1 5
Shape
Item
Spacer
Note: The spacer is used as packaging material.
Mounting cord clamp Cable tie
Quantity 1 1 1
Shape
Item
Screw for Mounting cord clamp 4 × 16
(Use when joining room air conditioner parts)
Quantity 1
Shape
Detailed installation information should be referred to its Installation Manual.
PQ attachment (Rear inlet) (PAC-HA31PAR)
Item PLATE 1
Quantity 1
PLATE 2
–
PLATE 3
1
PLATE 4
1
Screw (4 × 10)
3
Screw (5 × 10)
2
RUBBER PLATE
2
RUBBER PLATE
2
Shape
Detailed installation information should be referred to its Installation Manual.
PQ box (PAC-KE91, 92, 93, 94, 95PTB-E)
Item
Quantity
Screw (4 × 10)
22 (PAC-KE91PTB-E)
26 (PAC-KE92, 93PTB-E)
32 (PAC-KE94, 95PTB-E)
2
WIRING COVER
1 2
SUCTION FLANGE
1
RUBBER PLATE
CABLE STRAP
Shape
Detailed installation information should be referred to its Installation Manual.
PQ attachment (Bottom inlet) (PAC-HA31PAU)
Item PLATE 1
Quantity 1
PLATE 2
1
PLATE 3
1
PLATE 4
1
Screw (4 × 10)
9
CABLE STRAP
1
WIRE SADDLE
1
Shape
Detailed installation information should be referred to its Installation Manual.
0000006347.BOOK 35 ページ 2021年7月13日 火曜日 午前9時52分
MEES21K075
PEFY-M-VMA(L)-A
36
9. OPTIONAL PARTS Ceiling concealed (Medium static pressure type)
Air
outlet
Air
inlet
100
A
41
509
267
250
732
69
801
B
Plasma
quad
connect
Control
box
Cover
WIDE
A
B
700
850
900
1050
1100
1250
1400
1550
1600
1750
Top
Top
Bottom
view
Piping
side
view
Inlet
air
side
view
Front
Back
PEFY-P20, 25, 32, 40, 50, 63, 71, 80, 100, 125, 140VMA(L)-A
with PQ attachment (Rear inlet) and Plasma Quad Connect
Unit: mm
Model WIDE A B Model WIDE A B
PEFY-P20,25,32VMA(L)-A 700 850 PEFY-P100,125VMA(L)-A 1400 1550
PEFY-P40,50VMA(L)-A 900 1050 PEFY-P140VMA(L)-A 1600 1750
PEFY-P63,71,80VMA(L)-A 1100 1250
The drawing above is a sample image of the optional parts being installed on a unit.
0000006347.BOOK 36 ページ 2021年7月13日 火曜日 午前9時52分
MEES21K075
PEFY-M-VMA(L)-A
37
9. OPTIONAL PARTS Ceiling concealed (Medium static pressure type)
700
700
Min.300mm
Min.10mm
450
450
450
50~150
D
700
Min.300mm
C 50
50
F
777
777
50
E
50
475
C
450
Min.20mm
Min.300mm
C
450
475
450
Min.300mm
Min.10mm
Access
door
1
(450×450)
Access
door
3
Air
inlet
Access
door
1
(450×450)
Ceiling
beam
Access
door
2(450×450)
Control
box
Air
outlet
Air
outlet
Air
inlet
Maintenance
access
space
Control
box
Access
door
3
Control
box
100~200
Bottom
of
indoor
unit
(Viewed
from
the
direction
of
the
arrow
B)
B
Ceiling
beam
Ceiling
Access
door
2
(450×450)
Ceiling
A
Bottom
of
indoor
unit
100~200
Control
box
Fig.3
Fig.4
Fig.5
Fig.2
Fig.1
Maintenance
access
space
(Viewed
from
the
direction
of
the
arrow
B)
Bottom
of
indoor
unit
Access
door
4
Maintenance
access
space
(Viewed
from
the
direction
of
the
arrow
A)
Plasma
quad
connect
Plasma
quad
connect
Plasma
quad
connect
Control
box
Plasma
quad
connect
Plasma
quad
connect
Note.(3)
Note.(3)
WIDE
C
D
E
F
700
50~150
800
1300
900
150~250
1000
1500
1100
250~350
1200
1700
1400
400~500
1500
2000
1600
500~600
1700
2200
[Maintenance
access
space]
Secure
enough
access
space
to
allow
for
the
maintenance,
inspection,
and
replacement
of
the
motor,
fan,
drain
pump,
heat
exchanger,
and
control
box
in
one
of
the
following
ways.
Select
an
installation
site
for
the
indoor
unit
so
that
its
maintenance
access
space
will
not
be
obstructed
by
beams
or
other
objects.
(1)
When
a
space
of
300mm
or
more
is
available
below
the
unit
between
the
unit
and
the
ceiling.
(Fig.1)
•
Create
access
door
1
and
2
(450x450mm
each)
as
shown
in
Fig.2.
(Access
door
2
is
not
required
if
enough
space
is
available
below
the
unit
for
a
maintenance
worker
to
work
in.)
(2)
When
a
space
of
less
than
300mm
is
available
below
the
unit
between
the
unit
and
the
ceiling.
(At
least
20mm
of
space
should
be
left
below
the
unit
as
shown
in
Fig.3.)
•
Create
access
door
1
diagonally
below
the
control
box
and
access
door
3
below
the
unit
as
shown
in
Fig.4.
or
•
Create
access
door
4
below
the
control
box
and
the
unit
as
shown
in
Fig.5.
(3)
For
maintenance
if
there
is
more
than
170mm
from
the
top
surfce,
the
cover
can
be
pulled
out
without
removing
the
PQ
attachment.
(Fig.1,
Fig.3)
PEFY-P20, 25, 32, 40, 50, 63, 71, 80, 100, 125, 140VMA(L)-A
with PQ attachment (Rear inlet) and Plasma Quad Connect
Unit: mm
Model WIDE C D E F Model WIDE C D E F
PEFY-P20,25,32VMA(L)-A 700 50~150 800 1300 PEFY-P100,125VMA(L)-A 1400 400~500 1500 2000
PEFY-P40,50VMA(L)-A 900 150~250 1000 1500 PEFY-P140VMA(L)-A 1600 500~600 1700 2200
PEFY-P63,71,80VMA(L)-A 1100 250~350 1200 1700
The drawing above is a sample image of the optional parts being installed on a unit.
0000006347.BOOK 37 ページ 2021年7月13日 火曜日 午前9時52分
MEES21K075
PEFY-M-VMA(L)-A
38
9. OPTIONAL PARTS Ceiling concealed (Medium static pressure type)
Plasma
quad
connect
Control
box
Top
Top
Bottom
view
Piping
side
view
Back
view
Front
Back
Inlet
air
side
view
Air
outlet
Air
inlet
100
732
A
748
B
250
320
168
561
47
506
PEFY-P20, 25, 32, 40, 50, 63, 71, 80, 100, 125, 140VMA(L)-A
with PQ attachment (Bottom inlet) and Plasma Quad Connect
Unit: mm
WIDE
A
B
700
850
900
1050
1100
1250
1400
1550
1600
1750
Model WIDE A B Model WIDE A B
PEFY-P20,25,32VMA(L)-A 700 850 PEFY-P100,125VMA(L)-A 1400 1550
PEFY-P40,50VMA(L)-A 900 1050 PEFY-P140VMA(L)-A 1600 1750
PEFY-P63,71,80VMA(L)-A 1100 1250
The drawing above is a sample image of the optional parts being installed on a unit.
0000006347.BOOK 38 ページ 2021年7月13日 火曜日 午前9時52分
MEES21K075
PEFY-M-VMA(L)-A
39
9. OPTIONAL PARTS Ceiling concealed (Medium static pressure type)
700
700
Min.300mm
Min.10mm
450
450
450
50~150
D
700
Min.300mm
C 50
50
F
777
777
50
E
50
475
C
450
Min.20mm
Min.300mm
C
450
475
450
Min.300mm
Min.10mm
Access
door
1
(450×450)
Access
door
1
(450×450)
Maintenance
access
space
Control
box
Access
door
3
Control
box
100~200
Bottom
of
indoor
unit
(Viewed
from
the
direction
of
the
arrow
B)
B
Access
door
2
(450×450)
A
Bottom
of
indoor
unit
100~200
Control
box
Fig.3
Fig.4
Fig.5
Fig.2
Fig.1
Maintenance
access
space
(Viewed
from
the
direction
of
the
arrow
B)
Bottom
of
indoor
unit
Access
door
4
Maintenance
access
space
(Viewed
from
the
direction
of
the
arrow
A)
Plasma
quad
connect
Plasma
quad
connect
Plasma
quad
connect
Ceiling
beam
Air
outlet
Air
inlet
Control
box
Plasma
quad
connect
Access
door
3
Ceiling
Ceiling
beam
Air
outlet
Air
inlet
Control
box
Plasma
quad
connect
Access
door
2
(450x450)
Ceiling
WIDE
C
D
E
F
700
50~150
800
1300
900
150~250
1000
1500
1100
250~350
1200
1700
1400
400~500
1500
2000
1600
500~600
1700
2200
[Maintenance
access
space]
Secure
enough
access
space
to
allow
for
the
maintenance,
inspection,
and
replacement
of
the
motor,
fan,
drain
pump,
heat
exchanger,
and
control
box
in
one
of
the
following
ways.
Select
an
installation
site
for
the
indoor
unit
so
that
its
maintenance
access
space
will
not
be
obstructed
by
beams
or
other
objects.
(1)
When
a
space
of
300mm
or
more
is
available
below
the
unit
between
the
unit
and
the
ceiling.
(Fig.1)
•
Create
access
door
1
and
2
(450x450mm
each)
as
shown
in
Fig.2.
(Access
door
2
is
not
required
if
enough
space
is
available
below
the
unit
for
a
maintenance
worker
to
work
in.)
(2)
When
a
space
of
less
than
300mm
is
available
below
the
unit
between
the
unit
and
the
ceiling.
(At
least
20mm
of
space
should
be
left
below
the
unit
as
shown
in
Fig.3.)
•
Create
access
door
1
diagonally
below
the
control
box
and
access
door
3
below
the
unit
as
shown
in
Fig.4.
or
•
Create
access
door
4
below
the
control
box
and
the
unit
as
shown
in
Fig.5.
PEFY-P20, 25, 32, 40, 50, 63, 71, 80, 100, 125, 140VMA(L)-A
with PQ attachment (Bottom inlet) and Plasma Quad Connect
Unit: mm
Model WIDE C D E F Model WIDE C D E F
PEFY-P20,25,32VMA(L)-A 700 50~150 800 1300 PEFY-P100,125VMA(L)-A 1400 400~500 1500 2000
PEFY-P40,50VMA(L)-A 900 150~250 1000 1500 PEFY-P140VMA(L)-A 1600 500~600 1700 2200
PEFY-P63,71,80VMA(L)-A 1100 250~350 1200 1700
The drawing above is a sample image of the optional parts being installed on a unit.
0000006347.BOOK 39 ページ 2021年7月13日 火曜日 午前9時52分
MEES21K075
PEFY-M-VMA(L)-A
40
9. OPTIONAL PARTS Ceiling concealed (Medium static pressure type)
Control
box
Air
outlet
Air
inlet
Plasma
quad
connect
2×D-ø2.9
2×1-ø2.9
Air
Filter
Air
Filter
PQ
Box
WIDE
A
B
C
D
E
700
850
658
7
600
900
1050
858
9
800
1100
1250
1058
11
1000
1400
1550
1358
14
1300
1600
1750
1558
16
1500
Top
Top
Bottom
view
Piping
side
view
Inlet
air
side
view
Front
Back
250
C(Duct) 21
100
A
B
32
700
29
100×(D-1)=E
10
100
911
153
26 20 208(Duct)
104
10
PEFY-P20, 25, 32, 40, 50, 63, 71, 80, 100, 125, 140VMA(L)-A
with PQ box and Plasma Quad Connect
Unit: mm
Model WIDE A B C D E Model WIDE A B C D E
PEFY-P20,25,32VMA(L)-A 700 850 658 7 600 PEFY-P100,125VMA(L)-A 1400 1550 1358 14 1300
PEFY-P40,50VMA(L)-A 900 1050 858 9 800 PEFY-P140VMA(L)-A 1600 1750 1558 16 1500
PEFY-P63,71,80VMA(L)-A 1100 1250 1058 11 1000
The drawing above is a sample image of the optional parts being installed on a unit.
0000006347.BOOK 40 ページ 2021年7月13日 火曜日 午前9時52分
MEES21K075
PEFY-M-VMA(L)-A
41
9. OPTIONAL PARTS Ceiling concealed (Medium static pressure type)
K
Min.480mm
853
50
50
628
853
Min.480mm
853
450
628
Min.10mm
450
Min.10mm
250~300
450
G
50~150
250~300
Min.480mm
450
450
450
50
50
960
960
H
J
F F
F
Min.300mm
Min.20mm
Maintenance
access
space
Maintenance
access
space
Maintenance
access
space
Access
door
3
Access
door
4
Access
door
2
(450×450)
Ceiling
Ceiling
A
B
Fig.3
Fig.4
Fig.2
Fig.1
Fig.5
(Viewed
from
the
direction
of
the
arrow
A)
*
In
case
of
side
maintenance
for
air
filter.
*
In
case
of
side
maintenance
for
air
filter.
More
than
200
More
than
200
(Viewed
from
the
direction
of
the
arrow
B)
(Viewed
from
the
direction
of
the
arrow
B)
Intake
air
Intake
air
Supply
air
Supply
air
Access
door
2(450×450)
Access
door
3
Ceiling
beam
Ceiling
beam
Bottom
of
indoor
unit
Bottom
of
indoor
unit
Bottom
of
indoor
unit
Access
door
1
(450×450)
Access
door
1
(450×450)
Control
box
Control
box
Control
box
Control
box
Control
box
PQ
Box
PQ
Box
WIDE
F
G
H
J
K
700
50~150
800
1300
1450
900
150~250
1000
1500
1850
1100
250~350
1200
1700
1400
400~500
1500
2000
2150
1600
500~600
1700
2200
2550
[Maintenance
access
space]
Secure
enough
access
space
to
allow
for
the
maintenance,
inspection,
and
replacement
of
the
motor,
fan,
drain
pump,
heat
exchanger,
and
control
box
in
one
of
the
following
ways.
Select
an
installation
site
for
the
indoor
unit
so
that
its
maintenance
access
space
will
not
be
obstructed
by
beams
or
other
objects.
(1)
When
a
space
of
300mm
or
more
is
available
below
the
unit
between
the
unit
and
the
ceiling.
(Fig.1)
•
Create
access
door
1
and
2
(450x450mm
each)
as
shown
in
Fig.2.
(Access
door
2
is
not
required
if
enough
space
is
available
below
the
unit
for
a
maintenance
worker
to
work
in.)
(2)
When
a
space
of
less
than
300mm
is
available
below
the
unit
between
the
unit
and
the
ceiling.
(At
least
20mm
of
space
should
be
left
below
the
unit
as
shown
in
Fig.3.)
•
Create
access
door
1
diagonally
below
the
control
box
and
access
door
3
below
the
unit
as
shown
in
Fig.4.
or
•
Create
access
door
4
below
the
control
box
and
the
unit
as
shown
in
Fig.5.
*
Dimension
'K'
is
in
case
of
side
maintenance
for
air
filter.
PEFY-P20, 25, 32, 40, 50, 63, 71, 80, 100, 125, 140VMA(L)-A
with PQ box and Plasma Quad Connect
Unit: mm
Model WIDE F G H J K Model WIDE F G H J K
PEFY-P20,25,32VMA(L)-A 700 50~150 800 1300 1450 PEFY-P100,125VMA(L)-A 1400 400~500 1500 2000 2150
PEFY-P40,50VMA(L)-A 900 150~250 1000 1500 1850 PEFY-P140VMA(L)-A 1600 500~600 1700 2200 2550
PEFY-P63,71,80VMA(L)-A 1100 250~350 1200 1700 -
The drawing above is a sample image of the optional parts being installed on a unit.
0000006347.BOOK 41 ページ 2021年7月13日 火曜日 午前9時52分
42
MEES21K075
Ceiling concealed (Medium static pressure type)
0000006347.BOOK 42 ページ 2021年7月13日 火曜日 午前9時52分
MEES21K075
New publication effective July 2021
Specifications subject to change without notice
Warning
Do not use refrigerant other than the type indicated in the manuals provided with the unit and on the nameplate.
- Doing so may cause the unit or pipes to burst, or result in explosion or fire during use, repair, or at the time of disposal of the unit.
- It may also be in violation of applicable laws.
- MITSUBISHI ELECTRIC CORPORATION cannot be held responsible for malfunctions or accidents resulting from the use of the wrong
type of refrigerant.
Our air conditioning equipment and heat pumps contain a fluorinated greenhouse gas, R32 or R410A.
■
■

PLFY-PVFM-E.pdf

  • 1.
  • 2.
    PEFY-M-VMA(L)-A MEES21K075 1 CONTENTS Ceilingconcealed (Medium static pressure type) I.Ceiling concealed (Medium static pressure type) 1. SPECIFICATIONS.................................................................................................................................... 2 2. EXTERNAL DIMENSIONS ....................................................................................................................... 8 3. CENTER OF GRAVITY ............................................................................................................................ 16 4. ELECTRICAL WIRING DIAGRAMS ......................................................................................................... 17 5. SOUND LEVELS ...................................................................................................................................... 18 5-1. Sound levels .................................................................................................................................... 18 5-2. NC curves ........................................................................................................................................ 19 6. FAN CHARACTERISTICS CURVES........................................................................................................ 23 7. CAPACITY TABLES ................................................................................................................................. 32 7-1. Correction by fan speed................................................................................................................... 32 8. ELECTRICAL CHARACTERISTICS......................................................................................................... 33 9. OPTIONAL PARTS................................................................................................................................... 34 9-1. Optional parts line up for the Indoor unit.......................................................................................... 34 9-2. Filter box .......................................................................................................................................... 34 9-3. Plasma Quad Connect..................................................................................................................... 35 0000006347.BOOK 1 ページ 2021年7月13日 火曜日 午前9時52分
  • 3.
    MEES21K075 PEFY-M-VMA(L)-A 2 1. SPECIFICATIONS Ceilingconcealed (Medium static pressure type) I.Ceiling concealed (Medium static pressure type) 1. SPECIFICATIONS Model PEFY-M20VMA-A PEFY-M25VMA-A PEFY-M32VMA-A PEFY-M40VMA-A Power source 1-phase 220-230-240 V 50 Hz 1-phase 220-230-240 V 50 Hz 1-phase 220-230-240 V 50 Hz 1-phase 220-230-240 V 50 Hz Cooling capacity *1 kW 2.2 2.8 3.6 4.5 (Nominal) *1 BTU/h 7,500 9,600 12,300 15,400 *2 Power input kW 0.032 0.032 0.044 0.047 *2 Current input A 0.26-0.25-0.24 0.26-0.25-0.24 0.36-0.34-0.33 0.39-0.37-0.36 Heating capacity *3 kW 2.5 3.2 4.0 5.0 (Nominal) *3 BTU/h 8,500 10,900 13,600 17,100 *2 Power input kW 0.030 0.030 0.042 0.045 *2 Current input A 0.26-0.25-0.24 0.26-0.25-0.24 0.36-0.34-0.33 0.39-0.37-0.36 External finish Galvanized steel plate Galvanized steel plate Galvanized steel plate Galvanized steel plate External dimension H x W x D mm 250 x 700 x 732 250 x 700 x 732 250 x 700 x 732 250 x 900 x 732 in. 9-7/8 x 27-9/16 x 28-7/8 9-7/8 x 27-9/16 x 28-7/8 9-7/8 x 27-9/16 x 28-7/8 9-7/8 x 35-7/16 x 28-7/8 Net weight kg (lbs) 21 (47) 21 (47) 21 (47) 25 (56) Heat exchanger Cross fin (Aluminum fin and copper tube) Cross fin (Aluminum fin and copper tube) Cross fin (Aluminum fin and copper tube) Cross fin (Aluminum fin and copper tube) FAN Type x Quantity Sirocco fan x 1 Sirocco fan x 1 Sirocco fan x 1 Sirocco fan x 2 *4 External static press. Pa 35 - <50> - <70> - <100> - <150> 35 - <50> - <70> - <100> - <150> 35 - <50> - <70> - <100> - <150> 35 - <50> - <70> - <100> - <150> mmH2O 3.6 - <5.1> - <7.1> - <10.2> - <15.3> 3.6 - <5.1> - <7.1> - <10.2> - <15.3> 3.6 - <5.1> - <7.1> - <10.2> - <15.3> 3.6 - <5.1> - <7.1> - <10.2> - <15.3> Motor Type DC motor DC motor DC motor DC motor Motor output kW 0.085 0.085 0.085 0.121 Driving mechanism Direct-driven by motor Direct-driven by motor Direct-driven by motor Direct-driven by motor Air flow rate (Low-Mid-High) (Low-Mid-High) (Low-Mid-High) (Low-Mid-High) m3 /min 6.0 - 7.5 - 8.5 6.0 - 7.5 - 8.5 7.5 - 9.0 - 10.5 10.0 - 12.0 - 14.0 L/s 100 - 125 - 142 100 - 125 - 142 125 - 150 - 175 167 - 200 - 233 cfm 212 - 265 - 300 212 - 265 - 300 265 - 318 - 371 353 - 424 - 494 Sound pressure level (measured in anechoic room) (Low-Mid-High) (Low-Mid-High) (Low-Mid-High) (Low-Mid-High) *2, 5 dB <A> 21.0-25.0-27.0 21.0-25.0-27.0 23.0-27.0-30.0 23.0-28.0-31.0 *2, 6 18.0-22.0-24.0 18.0-22.0-24.0 20.0-24.0-27.0 20.0-25.0-28.0 Insulation material EPS, Polystyrene foam, Ure- thane foam EPS, Polystyrene foam, Ure- thane foam EPS, Polystyrene foam, Ure- thane foam EPS, Polystyrene foam, Ure- thane foam Air filter PP honeycomb fabric. PP honeycomb fabric. PP honeycomb fabric. PP honeycomb fabric. Protection device Fuse Fuse Fuse Fuse Refrigerant control device LEV LEV LEV LEV Connectable outdoor unit R32, R410A CITY MULTI R32,R410A CITY MULTI R32, R410A CITY MULTI R32, R410A CITY MULTI Refrigerant piping Liquid mm (in.) 6.35 (1/4)Brazed 6.35 (1/4)Brazed 6.35 (1/4)Brazed 6.35 (1/4)Brazed diameter Gas mm (in.) 12.7 (1/2)Brazed 12.7 (1/2)Brazed 12.7 (1/2)Brazed 12.7 (1/2)Brazed Field drain pipe size mm (in.) O.D.32 (1-1/4") O.D.32 (1-1/4") O.D.32 (1-1/4") O.D.32 (1-1/4") Drawing External KB94C15Y KB94C15Y KB94C15Y KB94C15Y Wiring KB94C15X KB94C15X KB94C15X KB94C15X Refrigerant cycle - - - - Standard attachment Document Installation Manual, Instruction Book Installation Manual, Instruction Book Installation Manual, Instruction Book Installation Manual, Instruction Book Accessory Washer, Drain hose, Tie band Washer, Drain hose, Tie band Washer, Drain hose, Tie band Washer, Drain hose, Tie band Optional parts Filter box PAC-KE91TB-E PAC-KE91TB-E PAC-KE91TB-E PAC-KE92TB-E Plasma Quad Connect MAC-100FT-E MAC-100FT-E MAC-100FT-E MAC-100FT-E PQ attachment (Rear inlet) PAC-HA31PAR PAC-HA31PAR PAC-HA31PAR PAC-HA31PAR PQ attachment (Bottom inlet) PAC-HA31PAU PAC-HA31PAU PAC-HA31PAU PAC-HA31PAU PQ box PAC-KE91PTB-E PAC-KE91PTB-E PAC-KE91PTB-E PAC-KE92PTB-E Remarks * Details on foundation work, duct work, insulation work, electrical wiring, power source switch, and other items shall be referred to the Installation Manual. * Due to continuing improvement, above specifications may be subject to change without notice. Notes: Unit converter 1.Nominal cooling conditions Indoor:27°CDB/19°CWB (81°FDB/66°FWB), Outdoor:35°CDB (95°FDB) Pipe length:7.5m (24-9/16ft.), Level difference:0m (0ft.) 2.The values are measured at the factory setting of external static pressure. 3.Nominal heating conditions Indoor:20°CDB (68°FDB), Outdoor:7°CDB/6°CWB (45°FDB/43°FWB) Pipe length:7.5m (24-9/16ft.), Level difference:0m (0ft.) 4.The factory setting of airflow mode and external static pressure mode is shown without < >. Refer to "Fan characteristics curves", according to the external static pressure, in DATA BOOK for the usable range of air flow rate. 5.Measured in anechoic room with a 1 m air inlet duct and 2 m air outlet duct attached to the unit and 1.5 m below the unit. 6.Measured in anechoic room with a 2 m air inlet duct and 2 m air outlet duct attached to the unit and 1.5 m below the unit. * The sound pressure level measured by the conventional method in JIS. * R32 is flammable, and certain restrictions apply to the installation of units. For detail, refer to the section in the Databook on installation restrictions. BTU/h =kW x 3,412 cfm =m3 /min x 35.31 lbs =kg/0.4536 *Above specification data is subject to rounding variation. 0000006347.BOOK 2 ページ 2021年7月13日 火曜日 午前9時52分
  • 4.
    MEES21K075 PEFY-M-VMA(L)-A 3 1. SPECIFICATIONS Ceilingconcealed (Medium static pressure type) Model PEFY-M50VMA-A PEFY-M63VMA-A PEFY-M71VMA-A PEFY-M80VMA-A Power source 1-phase 220-230-240 V 50 Hz 1-phase 220-230-240 V 50 Hz 1-phase 220-230-240 V 50 Hz 1-phase 220-230-240 V 50 Hz Cooling capacity *1 kW 5.6 7.1 8.0 9.0 (Nominal) *1 BTU/h 19,100 24,200 27,300 30,700 *2 Power input kW 0.066 0.087 0.080 0.080 *2 Current input A 0.53-0.51-0.49 0.69-0.66-0.63 0.60-0.57-0.55 0.60-0.57-0.55 Heating capacity *3 kW 6.3 8.0 9.0 10.0 (Nominal) *3 BTU/h 21,500 27,300 30,700 34,100 *2 Power input kW 0.064 0.085 0.078 0.078 *2 Current input A 0.53-0.51-0.49 0.69-0.66-0.63 0.60-0.57-0.55 0.60-0.57-0.55 External finish Galvanized steel plate Galvanized steel plate Galvanized steel plate Galvanized steel plate External dimension H x W x D mm 250 x 900 x 732 250 x 900 x 732 250 x 1,100 x 732 250 x 1,100 x 732 in. 9-7/8 x 35-7/16 x 28-7/8 9-7/8 x 35-7/16 x 28-7/8 9-7/8 x 43-5/16 x 28-7/8 9-7/8 x 43-5/16 x 28-7/8 Net weight kg (lbs) 25 (56) 27 (60) 30 (67) 30 (67) Heat exchanger Cross fin (Aluminum fin and copper tube) Cross fin (Aluminum fin and copper tube) Cross fin (Aluminum fin and copper tube) Cross fin (Aluminum fin and copper tube) FAN Type x Quantity Sirocco fan x 2 Sirocco fan x 2 Sirocco fan x 2 Sirocco fan x 2 *4 External static press. Pa 35 - <50> - <70> - <100> - <150> 35 - <50> - <70> - <100> - <150> 40 - <50> - <70> - <100> - <150> 40 - <50> - <70> - <100> - <150> mmH2O 3.6 - <5.1> - <7.1> - <10.2> - <15.3> 3.6 - <5.1> - <7.1> - <10.2> - <15.3> 4.1 - <5.1> - <7.1> - <10.2> - <15.3> 4.1 - <5.1> - <7.1> - <10.2> - <15.3> Motor Type DC motor DC motor DC motor DC motor Motor output kW 0.121 0.121 0.121 0.121 Driving mechanism Direct-driven by motor Direct-driven by motor Direct-driven by motor Direct-driven by motor Air flow rate (Low-Mid-High) (Low-Mid-High) (Low-Mid-High) (Low-Mid-High) m3/min 12.0 - 14.5 - 17.0 13.5 - 16.0 - 19.0 14.5 - 18.0 - 21.0 14.5 - 18.0 - 21.0 L/s 200 - 242 - 283 225 - 267 - 317 242 - 300 - 350 242 - 300 - 350 cfm 424 - 512 - 600 477 - 565 - 671 512 - 636 - 742 512 - 636 - 742 Sound pressure level (measured in anechoic room) (Low-Mid-High) (Low-Mid-High) (Low-Mid-High) (Low-Mid-High) *2, 5 dB <A> 24.0-31.0-34.0 27.0-31.0-35.0 25.0-31.0-34.0 25.0-31.0-34.0 *2, 6 21.0-28.0-31.0 24.0-28.0-32.0 22.0-28.0-31.0 22.0-28.0-31.0 Insulation material EPS, Polystyrene foam, Ure- thane foam EPS, Polystyrene foam, Ure- thane foam EPS, Polystyrene foam, Ure- thane foam EPS, Polystyrene foam, Ure- thane foam Air filter PP honeycomb fabric. PP honeycomb fabric. PP honeycomb fabric. PP honeycomb fabric. Protection device Fuse Fuse Fuse Fuse Refrigerant control device LEV LEV LEV LEV Connectable outdoor unit R32, R410A CITY MULTI R32, R410A CITY MULTI R32, R410A CITY MULTI R32, R410A CITY MULTI Refrigerant piping Liquid mm (in.) 6.35 (1/4)Brazed 9.52 (3/8)Brazed 9.52 (3/8)Brazed 9.52 (3/8)Brazed diameter Gas mm (in.) 12.7 (1/2)Brazed 15.88 (5/8)Brazed 15.88 (5/8)Brazed 15.88 (5/8)Brazed Field drain pipe size mm (in.) O.D.32 (1-1/4") O.D.32 (1-1/4") O.D.32 (1-1/4") O.D.32 (1-1/4") Drawing External KB94C15Y KB94C15Y KB94C15Y KB94C15Y Wiring KB94C15X KB94C15X KB94C15X KB94C15X Refrigerant cycle - - - - Standard attachment Document Installation Manual, Instruction Book Installation Manual, Instruction Book Installation Manual, Instruction Book Installation Manual, Instruction Book Accessory Washer, Drain hose, Tie band Washer, Drain hose, Tie band Washer, Drain hose, Tie band Washer, Drain hose, Tie band Optional parts Filter box PAC-KE92TB-E PAC-KE92TB-E PAC-KE93TB-E PAC-KE93TB-E Plasma Quad Connect MAC-100FT-E MAC-100FT-E MAC-100FT-E MAC-100FT-E PQ attachment (Rear inlet) PAC-HA31PAR PAC-HA31PAR PAC-HA31PAR PAC-HA31PAR PQ attachment (Bottom inlet) PAC-HA31PAU PAC-HA31PAU PAC-HA31PAU PAC-HA31PAU PQ box PAC-KE92PTB-E PAC-KE92PTB-E PAC-KE93PTB-E PAC-KE93PTB-E Remarks * Details on foundation work, duct work, insulation work, electrical wiring, power source switch, and other items shall be referred to the Installation Manual. * Due to continuing improvement, above specifications may be subject to change without notice. Notes: Unit converter 1.Nominal cooling conditions Indoor:27°CDB/19°CWB (81°FDB/66°FWB), Outdoor:35°CDB (95°FDB) Pipe length:7.5m (24-9/16ft.), Level difference:0m (0ft.) 2.The values are measured at the factory setting of external static pressure. 3.Nominal heating conditions Indoor:20°CDB (68°FDB), Outdoor:7°CDB/6°CWB (45°FDB/43°FWB) Pipe length:7.5m (24-9/16ft.), Level difference:0m (0ft.) 4.The factory setting of airflow mode and external static pressure mode is shown without < >. Refer to "Fan characteristics curves", according to the external static pressure, in DATA BOOK for the usable range of air flow rate. 5.Measured in anechoic room with a 1 m air inlet duct and 2 m air outlet duct attached to the unit and 1.5 m below the unit. 6.Measured in anechoic room with a 2 m air inlet duct and 2 m air outlet duct attached to the unit and 1.5 m below the unit. * The sound pressure level measured by the conventional method in JIS. * R32 is flammable, and certain restrictions apply to the installation of units. For detail, refer to the section in the Databook on installation restrictions. BTU/h =kW x 3,412 cfm =m3/min x 35.31 lbs =kg/0.4536 *Above specification data is subject to rounding variation. 0000006347.BOOK 3 ページ 2021年7月13日 火曜日 午前9時52分
  • 5.
    MEES21K075 PEFY-M-VMA(L)-A 4 1. SPECIFICATIONS Ceilingconcealed (Medium static pressure type) Model PEFY-M100VMA-A PEFY-M125VMA-A PEFY-M140VMA-A Power source 1-phase 220-230-240 V 50 Hz 1-phase 220-230-240 V 50 Hz 1-phase 220-230-240 V 50 Hz Cooling capacity *1 kW 11.2 14.0 16.0 (Nominal) *1 BTU/h 38,200 47,800 54,600 *2 Power input kW 0.142 0.199 0.208 *2 Current input A 1.01-0.97-0.93 1.29-1.23-1.18 1.40-1.34-1.28 Heating capacity *3 kW 12.5 16.0 18.0 (Nominal) *3 BTU/h 42,700 54,600 61,400 *2 Power input kW 0.140 0.197 0.206 *2 Current input A 1.01-0.97-0.93 1.29-1.23-1.18 1.40-1.34-1.28 External finish Galvanized steel plate Galvanized steel plate Galvanized steel plate External dimension H x W x D mm 250 x 1,400 x 732 250 x 1,400 x 732 250 x 1,600 x 732 in. 9-7/8 x 55-1/8 x 28-7/8 9-7/8 x 55-1/8 x 28-7/8 9-7/8 x 63 x 28-7/8 Net weight kg (lbs) 37 (82) 38 (84) 42 (93) Heat exchanger Cross fin (Aluminum fin and copper tube) Cross fin (Aluminum fin and copper tube) Cross fin (Aluminum fin and copper tube) FAN Type x Quantity Sirocco fan x 3 Sirocco fan x 3 Sirocco fan x 3 *4 External static press. Pa 40 - <50> - <70> - <100> - <150> <40> - 50 - <70> - <100> - <150> <40> - 50 - <70> - <100> - <150> mmH2O 4.1 - <5.1> - <7.1> - <10.2> - <15.3> <4.1> - 5.1 - <7.1> - <10.2> - <15.3> <4.1> - 5.1 - <7.1> - <10.2> - <15.3> Motor Type DC motor DC motor DC motor Motor output kW 0.300 0.300 0.300 Driving mechanism Direct-driven by motor Direct-driven by motor Direct-driven by motor Air flow rate (Low-Mid-High) (Low-Mid-High) (Low-Mid-High) m3/min 23.0 - 28.0 - 32.0 28.0 - 34.0 - 37.0 29.5 - 35.5 - 40.0 L/s 383 - 467 - 533 467 - 567 - 617 492 - 592 - 667 cfm 812 - 989 - 1,130 989 - 1,201 - 1,306 1,042 - 1,254 - 1,412 Sound pressure level (measured in anechoic room) (Low-Mid-High) (Low-Mid-High) (Low-Mid-High) *2, 5 dB <A> 30.0-35.0-38.0 34.0-38.0-40.0 33.0-37.0-40.0 *2, 6 27.0-32.0-35.0 31.0-35.0-37.0 30.0-34.0-37.0 Insulation material EPS, Polystyrene foam, Ure- thane foam EPS, Polystyrene foam, Ure- thane foam EPS, Polystyrene foam, Ure- thane foam Air filter PP honeycomb fabric. PP honeycomb fabric. PP honeycomb fabric. Protection device Fuse Fuse Fuse Refrigerant control device LEV LEV LEV Connectable outdoor unit R32, R410A CITY MULTI R32, R410A CITY MULTI R32, R410A CITY MULTI Refrigerant piping Liquid mm (in.) 9.52 (3/8)Brazed 9.52 (3/8)Brazed 9.52 (3/8)Brazed diameter Gas mm (in.) 15.88 (5/8)Brazed 15.88 (5/8)Brazed 15.88 (5/8)Brazed Field drain pipe size mm (in.) O.D.32 (1-1/4") O.D.32 (1-1/4") O.D.32 (1-1/4") Drawing External KB94C15Y KB94C15Y KB94C15Y Wiring KB94C15X KB94C15X KB94C15X Refrigerant cycle - - - Standard attachment Document Installation Manual, Instruction Book Installation Manual, Instruction Book Installation Manual, Instruction Book Accessory Washer, Drain hose, Tie band Washer, Drain hose, Tie band Washer, Drain hose, Tie band Optional parts Filter box PAC-KE94TB-E PAC-KE94TB-E PAC-KE95TB-E Plasma Quad Connect MAC-100FT-E MAC-100FT-E MAC-100FT-E PQ attachment (Rear inlet) PAC-HA31PAR PAC-HA31PAR PAC-HA31PAR PQ attachment (Bottom inlet) PAC-HA31PAU PAC-HA31PAU PAC-HA31PAU PQ box PAC-KE94PTB-E PAC-KE94PTB-E PAC-KE95PTB-E Remarks * Details on foundation work, duct work, insulation work, electrical wiring, power source switch, and other items shall be referred to the Installation Manual. * Due to continuing improvement, above specifications may be subject to change without notice. Notes: Unit converter 1.Nominal cooling conditions Indoor:27°CDB/19°CWB (81°FDB/66°FWB), Outdoor:35°CDB (95°FDB) Pipe length:7.5m (24-9/16ft.), Level difference:0m (0ft.) 2.The values are measured at the factory setting of external static pressure. 3.Nominal heating conditions Indoor:20°CDB (68°FDB), Outdoor:7°CDB/6°CWB (45°FDB/43°FWB) Pipe length:7.5m (24-9/16ft.), Level difference:0m (0ft.) 4.The factory setting of airflow mode and external static pressure mode is shown without < >. Refer to "Fan characteristics curves", according to the external static pressure, in DATA BOOK for the usable range of air flow rate. 5.Measured in anechoic room with a 1 m air inlet duct and 2 m air outlet duct attached to the unit and 1.5 m below the unit. 6.Measured in anechoic room with a 2 m air inlet duct and 2 m air outlet duct attached to the unit and 1.5 m below the unit. * The sound pressure level measured by the conventional method in JIS. * R32 is flammable, and certain restrictions apply to the installation of units. For detail, refer to the section in the Databook on installation restrictions. BTU/h =kW x 3,412 cfm =m3/min x 35.31 lbs =kg/0.4536 *Above specification data is subject to rounding variation. 0000006347.BOOK 4 ページ 2021年7月13日 火曜日 午前9時52分
  • 6.
    MEES21K075 PEFY-M-VMA(L)-A 5 1. SPECIFICATIONS Ceilingconcealed (Medium static pressure type) Model PEFY-M20VMAL-A PEFY-M25VMAL-A PEFY-M32VMAL-A PEFY-M40VMAL-A Power source 1-phase 220-230-240 V 50 Hz 1-phase 220-230-240 V 50 Hz 1-phase 220-230-240 V 50 Hz 1-phase 220-230-240 V 50 Hz Cooling capacity *1 kW 2.2 2.8 3.6 4.5 (Nominal) *1 BTU/h 7,500 9,600 12,300 15,400 *2 Power input kW 0.030 0.030 0.042 0.045 *2 Current input A 0.26-0.25-0.24 0.26-0.25-0.24 0.36-0.34-0.33 0.39-0.37-0.36 Heating capacity *3 kW 2.5 3.2 4.0 5.0 (Nominal) *3 BTU/h 8,500 10,900 13,600 17,100 *2 Power input kW 0.030 0.030 0.042 0.045 *2 Current input A 0.26-0.25-0.24 0.26-0.25-0.24 0.36-0.34-0.33 0.39-0.37-0.36 External finish Galvanized steel plate Galvanized steel plate Galvanized steel plate Galvanized steel plate External dimension H x W x D mm 250 x 700 x 732 250 x 700 x 732 250 x 700 x 732 250 x 900 x 732 in. 9-7/8 x 27-9/16 x 28-7/8 9-7/8 x 27-9/16 x 28-7/8 9-7/8 x 27-9/16 x 28-7/8 9-7/8 x 35-7/16 x 28-7/8 Net weight kg (lbs) 20 (45) 20 (45) 20 (45) 24 (53) Heat exchanger Cross fin (Aluminum fin and copper tube) Cross fin (Aluminum fin and copper tube) Cross fin (Aluminum fin and copper tube) Cross fin (Aluminum fin and copper tube) FAN Type x Quantity Sirocco fan x 1 Sirocco fan x 1 Sirocco fan x 1 Sirocco fan x 2 *4 External static press. Pa 35 - <50> - <70> - <100> - <150> 35 - <50> - <70> - <100> - <150> 35 - <50> - <70> - <100> - <150> 35 - <50> - <70> - <100> - <150> mmH2O 3.6 - <5.1> - <7.1> - <10.2> - <15.3> 3.6 - <5.1> - <7.1> - <10.2> - <15.3> 3.6 - <5.1> - <7.1> - <10.2> - <15.3> 3.6 - <5.1> - <7.1> - <10.2> - <15.3> Motor Type DC motor DC motor DC motor DC motor Motor output kW 0.085 0.085 0.085 0.121 Driving mechanism Direct-driven by motor Direct-driven by motor Direct-driven by motor Direct-driven by motor Air flow rate (Low-Mid-High) (Low-Mid-High) (Low-Mid-High) (Low-Mid-High) m3/min 6.0 - 7.5 - 8.5 6.0 - 7.5 - 8.5 7.5 - 9.0 - 10.5 10.0 - 12.0 - 14.0 L/s 100 - 125 - 142 100 - 125 - 142 125 - 150 - 175 167 - 200 - 233 cfm 212 - 265 - 300 212 - 265 - 300 265 - 318 - 371 353 - 424 - 494 Sound pressure level (measured in anechoic room) (Low-Mid-High) (Low-Mid-High) (Low-Mid-High) (Low-Mid-High) *2, 5 dB <A> 21.0-25.0-27.0 21.0-25.0-27.0 23.0-27.0-30.0 23.0-28.0-31.0 *2, 6 18.0-22.0-24.0 18.0-22.0-24.0 20.0-24.0-27.0 20.0-25.0-28.0 Insulation material EPS, Polystyrene foam, Ure- thane foam EPS, Polystyrene foam, Ure- thane foam EPS, Polystyrene foam, Ure- thane foam EPS, Polystyrene foam, Ure- thane foam Air filter PP honeycomb fabric. PP honeycomb fabric. PP honeycomb fabric. PP honeycomb fabric. Protection device Fuse Fuse Fuse Fuse Refrigerant control device LEV LEV LEV LEV Connectable outdoor unit R32, R410A CITY MULTI R32, R410A CITY MULTI R32, R410A CITY MULTI R32, R410A CITY MULTI Refrigerant piping Liquid mm (in.) 6.35 (1/4)Brazed 6.35 (1/4)Brazed 6.35 (1/4)Brazed 6.35 (1/4)Brazed diameter Gas mm (in.) 12.7 (1/2)Brazed 12.7 (1/2)Brazed 12.7 (1/2)Brazed 12.7 (1/2)Brazed Field drain pipe size mm (in.) O.D.32 (1-1/4") O.D.32 (1-1/4") O.D.32 (1-1/4") O.D.32 (1-1/4") Drawing External KB94C15Z KB94C15Z KB94C15Z KB94C15Z Wiring KB94C15X KB94C15X KB94C15X KB94C15X Refrigerant cycle - - - - Standard attachment Document Installation Manual, Instruction Book Installation Manual, Instruction Book Installation Manual, Instruction Book Installation Manual, Instruction Book Accessory Washer, Drain hose, Tie band Washer, Drain hose, Tie band Washer, Drain hose, Tie band Washer, Drain hose, Tie band Optional parts Filter box PAC-KE91TB-E PAC-KE91TB-E PAC-KE91TB-E PAC-KE92TB-E Plasma Quad Connect MAC-100FT-E MAC-100FT-E MAC-100FT-E MAC-100FT-E PQ attachment (Rear inlet) PAC-HA31PAR PAC-HA31PAR PAC-HA31PAR PAC-HA31PAR PQ attachment (Bottom inlet) PAC-HA31PAU PAC-HA31PAU PAC-HA31PAU PAC-HA31PAU PQ box PAC-KE91PTB-E PAC-KE91PTB-E PAC-KE91PTB-E PAC-KE92PTB-E Remarks * Details on foundation work, duct work, insulation work, electrical wiring, power source switch, and other items shall be referred to the Installation Manual. * Due to continuing improvement, above specifications may be subject to change without notice. Notes: Unit converter 1.Nominal cooling conditions Indoor:27°CDB/19°CWB (81°FDB/66°FWB), Outdoor:35°CDB (95°FDB) Pipe length:7.5m (24-9/16ft.), Level difference:0m (0ft.) 2.The values are measured at the factory setting of external static pressure. 3.Nominal heating conditions Indoor:20°CDB (68°FDB), Outdoor:7°CDB/6°CWB (45°FDB/43°FWB) Pipe length:7.5m (24-9/16ft.), Level difference:0m (0ft.) 4.The factory setting of airflow mode and external static pressure mode is shown without < >. Refer to "Fan characteristics curves", according to the external static pressure, in DATA BOOK for the usable range of air flow rate. 5.Measured in anechoic room with a 1 m air inlet duct and 2 m air outlet duct attached to the unit and 1.5 m below the unit. 6.Measured in anechoic room with a 2 m air inlet duct and 2 m air outlet duct attached to the unit and 1.5 m below the unit. * The sound pressure level measured by the conventional method in JIS. * R32 is flammable, and certain restrictions apply to the installation of units. For detail, refer to the section in the Databook on installation restrictions. BTU/h =kW x 3,412 cfm =m3/min x 35.31 lbs =kg/0.4536 *Above specification data is subject to rounding variation. 0000006347.BOOK 5 ページ 2021年7月13日 火曜日 午前9時52分
  • 7.
    MEES21K075 PEFY-M-VMA(L)-A 6 1. SPECIFICATIONS Ceilingconcealed (Medium static pressure type) Model PEFY-M50VMAL-A PEFY-M63VMAL-A PEFY-M71VMAL-A PEFY-M80VMAL-A Power source 1-phase 220-230-240 V 50 Hz 1-phase 220-230-240 V 50 Hz 1-phase 220-230-240 V 50 Hz 1-phase 220-230-240 V 50 Hz Cooling capacity *1 kW 5.6 7.1 8.0 9.0 (Nominal) *1 BTU/h 19,100 24,200 27,300 30,700 *2 Power input kW 0.064 0.085 0.078 0.078 *2 Current input A 0.53-0.51-0.49 0.69-0.66-0.63 0.60-0.57-0.55 0.60-0.57-0.55 Heating capacity *3 kW 6.3 8.0 9.0 10.0 (Nominal) *3 BTU/h 21,500 27,300 30,700 34,100 *2 Power input kW 0.064 0.085 0.078 0.078 *2 Current input A 0.53-0.51-0.49 0.69-0.66-0.63 0.60-0.57-0.55 0.60-0.57-0.55 External finish Galvanized steel plate Galvanized steel plate Galvanized steel plate Galvanized steel plate External dimension H x W x D mm 250 x 900 x 732 250 x 900 x 732 250 x 1,100 x 732 250 x 1,100 x 732 in. 9-7/8 x 35-7/16 x 28-7/8 9-7/8 x 35-7/16 x 28-7/8 9-7/8 x 43-5/16 x 28-7/8 9-7/8 x 43-5/16 x 28-7/8 Net weight kg (lbs) 24 (53) 26 (58) 29 (64) 29 (64) Heat exchanger Cross fin (Aluminum fin and copper tube) Cross fin (Aluminum fin and copper tube) Cross fin (Aluminum fin and copper tube) Cross fin (Aluminum fin and copper tube) FAN Type x Quantity Sirocco fan x 2 Sirocco fan x 2 Sirocco fan x 2 Sirocco fan x 2 *4 External static press. Pa 35 - <50> - <70> - <100> - <150> 35 - <50> - <70> - <100> - <150> 40 - <50> - <70> - <100> - <150> 40 - <50> - <70> - <100> - <150> mmH2O 3.6 - <5.1> - <7.1> - <10.2> - <15.3> 3.6 - <5.1> - <7.1> - <10.2> - <15.3> 4.1 - <5.1> - <7.1> - <10.2> - <15.3> 4.1 - <5.1> - <7.1> - <10.2> - <15.3> Motor Type DC motor DC motor DC motor DC motor Motor output kW 0.121 0.121 0.121 0.121 Driving mechanism Direct-driven by motor Direct-driven by motor Direct-driven by motor Direct-driven by motor Air flow rate (Low-Mid-High) (Low-Mid-High) (Low-Mid-High) (Low-Mid-High) m3/min 12.0 - 14.5 - 17.0 13.5 - 16.0 - 19.0 14.5 - 18.0 - 21.0 14.5 - 18.0 - 21.0 L/s 200 - 242 - 283 225 - 267 - 317 242 - 300 - 350 242 - 300 - 350 cfm 424 - 512 - 600 477 - 565 - 671 512 - 636 - 742 512 - 636 - 742 Sound pressure level (measured in anechoic room) (Low-Mid-High) (Low-Mid-High) (Low-Mid-High) (Low-Mid-High) *2, 5 dB <A> 24.0-31.0-34.0 27.0-31.0-35.0 25.0-31.0-34.0 25.0-31.0-34.0 *2, 6 21.0-28.0-31.0 24.0-28.0-32.0 22.0-28.0-31.0 22.0-28.0-31.0 Insulation material EPS, Polystyrene foam, Ure- thane foam EPS, Polystyrene foam, Ure- thane foam EPS, Polystyrene foam, Ure- thane foam EPS, Polystyrene foam, Ure- thane foam Air filter PP honeycomb fabric. PP honeycomb fabric. PP honeycomb fabric. PP honeycomb fabric. Protection device Fuse Fuse Fuse Fuse Refrigerant control device LEV LEV LEV LEV Connectable outdoor unit R32, R410A CITY MULTI R32, R410A CITY MULTI R32, R410A CITY MULTI R32, R410A CITY MULTI Refrigerant piping Liquid mm (in.) 6.35 (1/4)Brazed 9.52 (3/8)Brazed 9.52 (3/8)Brazed 9.52 (3/8)Brazed diameter Gas mm (in.) 12.7 (1/2)Brazed 15.88 (5/8)Brazed 15.88 (5/8)Brazed 15.88 (5/8)Brazed Field drain pipe size mm (in.) O.D.32 (1-1/4") O.D.32 (1-1/4") O.D.32 (1-1/4") O.D.32 (1-1/4") Drawing External KB94C15Z KB94C15Z KB94C15Z KB94C15Z Wiring KB94C15X KB94C15X KB94C15X KB94C15X Refrigerant cycle - - - - Standard attachment Document Installation Manual, Instruction Book Installation Manual, Instruction Book Installation Manual, Instruction Book Installation Manual, Instruction Book Accessory Washer, Drain hose, Tie band Washer, Drain hose, Tie band Washer, Drain hose, Tie band Washer, Drain hose, Tie band Optional parts Filter box PAC-KE92TB-E PAC-KE92TB-E PAC-KE93TB-E PAC-KE93TB-E Plasma Quad Connect MAC-100FT-E MAC-100FT-E MAC-100FT-E MAC-100FT-E PQ attachment (Rear inlet) PAC-HA31PAR PAC-HA31PAR PAC-HA31PAR PAC-HA31PAR PQ attachment (Bottom inlet) PAC-HA31PAU PAC-HA31PAU PAC-HA31PAU PAC-HA31PAU PQ box PAC-KE92PTB-E PAC-KE92PTB-E PAC-KE93PTB-E PAC-KE93PTB-E Remarks * Details on foundation work, duct work, insulation work, electrical wiring, power source switch, and other items shall be referred to the Installation Manual. * Due to continuing improvement, above specifications may be subject to change without notice. Notes: Unit converter 1.Nominal cooling conditions Indoor:27°CDB/19°CWB (81°FDB/66°FWB), Outdoor:35°CDB (95°FDB) Pipe length:7.5m (24-9/16ft.), Level difference:0m (0ft.) 2.The values are measured at the factory setting of external static pressure. 3.Nominal heating conditions Indoor:20°CDB (68°FDB), Outdoor:7°CDB/6°CWB (45°FDB/43°FWB) Pipe length:7.5m (24-9/16ft.), Level difference:0m (0ft.) 4.The factory setting of airflow mode and external static pressure mode is shown without < >. Refer to "Fan characteristics curves", according to the external static pressure, in DATA BOOK for the usable range of air flow rate. 5.Measured in anechoic room with a 1 m air inlet duct and 2 m air outlet duct attached to the unit and 1.5 m below the unit. 6.Measured in anechoic room with a 2 m air inlet duct and 2 m air outlet duct attached to the unit and 1.5 m below the unit. * The sound pressure level measured by the conventional method in JIS. * R32 is flammable, and certain restrictions apply to the installation of units. For detail, refer to the section in the Databook on installation restrictions. BTU/h =kW x 3,412 cfm =m3/min x 35.31 lbs =kg/0.4536 *Above specification data is subject to rounding variation. 0000006347.BOOK 6 ページ 2021年7月13日 火曜日 午前9時52分
  • 8.
    MEES21K075 PEFY-M-VMA(L)-A 7 1. SPECIFICATIONS Ceilingconcealed (Medium static pressure type) Model PEFY-M100VMAL-A PEFY-M125VMAL-A PEFY-M140VMAL-A Power source 1-phase 220-230-240 V 50 Hz 1-phase 220-230-240 V 50 Hz 1-phase 220-230-240 V 50 Hz Cooling capacity *1 kW 11.2 14.0 16.0 (Nominal) *1 BTU/h 38,200 47,800 54,600 *2 Power input kW 0.140 0.197 0.206 *2 Current input A 1.01-0.97-0.93 1.29-1.23-1.18 1.40-1.34-1.28 Heating capacity *3 kW 12.5 16.0 18.0 (Nominal) *3 BTU/h 42,700 54,600 61,400 *2 Power input kW 0.140 0.197 0.206 *2 Current input A 1.01-0.97-0.93 1.29-1.23-1.18 1.40-1.34-1.28 External finish Galvanized steel plate Galvanized steel plate Galvanized steel plate External dimension H x W x D mm 250 x 1,400 x 732 250 x 1,400 x 732 250 x 1,600 x 732 in. 9-7/8 x 55-1/8 x 28-7/8 9-7/8 x 55-1/8 x 28-7/8 9-7/8 x 63 x 28-7/8 Net weight kg (lbs) 36 (80) 37 (82) 41 (91) Heat exchanger Cross fin (Aluminum fin and copper tube) Cross fin (Aluminum fin and copper tube) Cross fin (Aluminum fin and copper tube) FAN Type x Quantity Sirocco fan x 3 Sirocco fan x 3 Sirocco fan x 3 *4 External static press. Pa 40 - <50> - <70> - <100> - <150> <40> - 50 - <70> - <100> - <150> <40> - 50 - <70> - <100> - <150> mmH2O 4.1 - <5.1> - <7.1> - <10.2> - <15.3> <4.1> - 5.1 - <7.1> - <10.2> - <15.3> <4.1> - 5.1 - <7.1> - <10.2> - <15.3> Motor Type DC motor DC motor DC motor Motor output kW 0.300 0.300 0.300 Driving mechanism Direct-driven by motor Direct-driven by motor Direct-driven by motor Air flow rate (Low-Mid-High) (Low-Mid-High) (Low-Mid-High) m3/min 23.0 - 28.0 - 32.0 28.0 - 34.0 - 37.0 29.5 - 35.5 - 40.0 L/s 383 - 467 - 533 467 - 567 - 617 492 - 592 - 667 cfm 812 - 989 - 1,130 989 - 1,201 - 1,306 1,042 - 1,254 - 1,412 Sound pressure level (measured in anechoic room) (Low-Mid-High) (Low-Mid-High) (Low-Mid-High) *2, 5 dB <A> 30.0-35.0-38.0 34.0-38.0-40.0 33.0-37.0-40.0 *2, 6 27.0-32.0-35.0 31.0-35.0-37.0 30.0-34.0-37.0 Insulation material EPS, Polystyrene foam, Ure- thane foam EPS, Polystyrene foam, Ure- thane foam EPS, Polystyrene foam, Ure- thane foam Air filter PP honeycomb fabric. PP honeycomb fabric. PP honeycomb fabric. Protection device Fuse Fuse Fuse Refrigerant control device LEV LEV LEV Connectable outdoor unit R32, R410A CITY MULTI R32, R410A CITY MULTI R32, R410A CITY MULTI Refrigerant piping Liquid mm (in.) 9.52 (3/8)Brazed 9.52 (3/8)Brazed 9.52 (3/8)Brazed diameter Gas mm (in.) 15.88 (5/8)Brazed 15.88 (5/8)Brazed 15.88 (5/8)Brazed Field drain pipe size mm (in.) O.D.32 (1-1/4") O.D.32 (1-1/4") O.D.32 (1-1/4") Drawing External KB94C15Z KB94C15Z KB94C15Z Wiring KB94C15X KB94C15X KB94C15X Refrigerant cycle - - - Standard attachment Document Installation Manual, Instruction Book Installation Manual, Instruction Book Installation Manual, Instruction Book Accessory Washer, Drain hose, Tie band Washer, Drain hose, Tie band Washer, Drain hose, Tie band Optional parts Filter box PAC-KE94TB-E PAC-KE94TB-E PAC-KE95TB-E Plasma Quad Connect MAC-100FT-E MAC-100FT-E MAC-100FT-E PQ attachment (Rear inlet) PAC-HA31PAR PAC-HA31PAR PAC-HA31PAR PQ attachment (Bottom inlet) PAC-HA31PAU PAC-HA31PAU PAC-HA31PAU PQ box PAC-KE94PTB-E PAC-KE94PTB-E PAC-KE95PTB-E Remarks * Details on foundation work, duct work, insulation work, electrical wiring, power source switch, and other items shall be referred to the Installation Manual. * Due to continuing improvement, above specifications may be subject to change without notice. Notes: Unit converter 1.Nominal cooling conditions Indoor:27°CDB/19°CWB (81°FDB/66°FWB), Outdoor:35°CDB (95°FDB) Pipe length:7.5m (24-9/16ft.), Level difference:0m (0ft.) 2.The values are measured at the factory setting of external static pressure. 3.Nominal heating conditions Indoor:20°CDB (68°FDB), Outdoor:7°CDB/6°CWB (45°FDB/43°FWB) Pipe length:7.5m (24-9/16ft.), Level difference:0m (0ft.) 4.The factory setting of airflow mode and external static pressure mode is shown without < >. Refer to "Fan characteristics curves", according to the external static pressure, in DATA BOOK for the usable range of air flow rate. 5.Measured in anechoic room with a 1 m air inlet duct and 2 m air outlet duct attached to the unit and 1.5 m below the unit. 6.Measured in anechoic room with a 2 m air inlet duct and 2 m air outlet duct attached to the unit and 1.5 m below the unit. * The sound pressure level measured by the conventional method in JIS. * R32 is flammable, and certain restrictions apply to the installation of units. For detail, refer to the section in the Databook on installation restrictions. BTU/h =kW x 3,412 cfm =m3/min x 35.31 lbs =kg/0.4536 *Above specification data is subject to rounding variation. 0000006347.BOOK 7 ページ 2021年7月13日 火曜日 午前9時52分
  • 9.
    MEES21K075 PEFY-M-VMA(L)-A 8 2. EXTERNAL DIMENSIONSCeiling concealed (Medium static pressure type) 2. EXTERNAL DIMENSIONS PEFY-M20, 25, 32, 40, 50, 63, 71, 80, 100, 125, 140VMA-A Unit: mm Control box 2×2-ø2.9 Air outlet Air inlet 2×E-ø2.9 Refrigerant piping Brazing connection (liquid) 2 1 Refrigerant piping Brazing connection (gas) Drain pump Air Filter Terminal block (Power source) Terminal block (Transmission) Drain pipe(O.D.ø32) (Spontaneous draining) Drain pipe (O.D.ø32) Suspension bolt hole 4-14×30 Slot Drain hose (I.D.ø32) <Accessory> (Actual length) Note 1.Use M10 screw for the Suspension bolt (field supply). 2.Keep the service space for the maintenance at the bottom. 3.This chart indicates for PEFY-M71·80VMA-A models, which have 2 fans.PEFY-M20·25·32VMA-A models have 1 fan. PEFY-M40·50·63VWA-A models have 2 fans. PEFY-M100·125·140VMA-A models have 3 fans. 4.In case of the inlet duct is used, remove the air filter (supply with the unit), then install the filter (field supply) at suction side. ø9.52 ø12.7 ø6.35 ø15.88 1558 1358 1500 1300 7 Model A 660 800 1200 700 754 900 954 860 9 E 11 D 1060 C 1100 B 1154 PEFY-M140VMA-A PEFY-M100, 125VMA-A PEFY-M71, 80VMA-A PEFY-M40, 50VMA-A PEFY-M20, 25, 32VMA-A 1400 1600 1454 1654 1500 1700 1360 1560 14 16 1000 1000 F 858 800 G 658 1058 600 900 954 860 9 PEFY-M63VMA-A 1000 858 800 Inlet air side view Outlet air side view Top Bottom Piping side view Top view 40 250 40 33 122 D (Duct) 20 210 18 G 21 100 57 73 10 A B (Suspension bolt pitch) C 23 643 (Suspension bolt pitch) 178(Duct) 23 10 238 32 700 732 136 67 356 100 41 217 100 30 100×(E-1)=F 15 58 65 0 -10 Less than 300mm Less than 700mm Liquid pipe 2 Gas pipe 1 0000006347.BOOK 8 ページ 2021年7月13日 火曜日 午前9時52分
  • 10.
    MEES21K075 PEFY-M-VMA(L)-A 9 2. EXTERNAL DIMENSIONSCeiling concealed (Medium static pressure type) PEFY-M20, 25, 32, 40, 50, 63, 71, 80, 100, 125, 140VMA-A Unit: mm J×(L-1)=M J H 6 K J H 112 11 112 700 700 475 Min.10mm 475 Min.10mm 450 450 50 Q 50~150 450 Min.300mm 450 450 450 50 Min.300mm 50 700 777 777 R S P P P Min.300mm Min.300mm Min.20mm 50 N-ø2.9 Maintenance access space Maintenance access space Maintenance access space Access door 3 Access door 4 Access door 2 (450×450) Ceiling Ceiling A B Fig.3 Fig.4 Fig.2 Fig.1 Fig.5 (Viewed from the direction of the arrow A) (Viewed from the direction of the arrow B) (Viewed from the direction of the arrow B) Intake air Intake air Supply air Supply air Access door 2 (450×450) Access door 3 Ceiling beam Ceiling beam Bottom of indoor unit Bottom of indoor unit Bottom of indoor unit 100~200 100~200 Access door 1 (450×450) Access door 1 (450×450) Control box Control box Control box Control box Control box [Maintenance access space] Secure enough access space to allow for the maintenance, inspection, and replacement of the motor, fan, drain pump, heat exchanger, and control box in one of the following ways. Select an installation site for the indoor unit so that its maintenance access space will not be obstructed by beams or other objects. (1) When a space of 300mm or more is available below the unit between the unit and the ceiling. (Fig.1) · Create access door 1 and 2 (450×450mm each) as shown in Fig.2. (Access door 2 is not required if enough space is available below the unit for a maintenance worker to work in.) (2) When a space of less than 300mm is available below the unit between the unit and the ceiling. (At least 20mm of space should be left below the unit as shown in Fig.3.) · Create access door 1 diagonally below the control box and access door 3 below the unit as shown in Fig.4. or · Create access door 4 below the control box and the unit as shown in Fig.5. 12 H Model PEFY-M20, 25, 32VMA-A PEFY-M40, 50, 63VMA-A PEFY-M71, 80VMA-A PEFY-M100, 125VMA-A PEFY-M140VMA-A 12 1480 1280 5 5 370 320 54 54 330 K 49 L 4 M 990 N 10 10 780 4 260 54 150 44 300 J 10 900 150~250 1000 1500 1100 1400 1600 250~350 400~500 500~600 1200 1500 1700 1700 2000 2200 P Q R S 700 50~150 800 1300 0000006347.BOOK 9 ページ 2021年7月13日 火曜日 午前9時52分
  • 11.
    MEES21K075 PEFY-M-VMA(L)-A 10 2. EXTERNAL DIMENSIONSCeiling concealed (Medium static pressure type) PEFY-M20, 25, 32, 40, 50, 63, 71, 80, 100, 125, 140VMA-A Suction filter box built-in-specification Unit: mm Control box 2×2-ø2.9 Air outlet 2×E-ø2.9 Refrigerant piping Brazing connection (liquid) 2 1 Refrigerant piping Brazing connection (gas) Drain pump Terminal block (Power source) Terminal block (Transmission) Drain pipe (O.D.ø32) (Spontaneous draining) Drain pipe (O.D.ø32) Suspension bolt hole 4-14×30 Slot Drain hose (I.D.ø32) <Accessory> (Actual length) Air inlet 2×H-ø2.9 2×1-ø2.9 Filter box Air Filter 3 Air Filter Note 1.Use M10 screw for the Suspension bolt (field supply). 2.Keep the service space for the maintenance at the bottom. 3.This chart indicates for PEFY-M71·80VMA-A models, which have 2 fans.PEFY-M20·25·32VMA-A models have 1 fan. PEFY-M40·50·63VWA-A models have 2 fans. PEFY-M100·125·140VMA-A models have 3 fans. 4.Use air filter installed with indoor unit. 1558 1358 1500 1300 7 Model A 660 800 1200 700 754 900 954 860 9 E 11 D 1060 C 1100 B 1154 PEFY-M140VMA-A PEFY-M100,125VMA-A PEFY-M71,80VMA-A PEFY-M40,50,63VMA-A PEFY-M20,25,32VMA-A 1400 1600 1454 1654 1500 1700 1360 1560 14 16 1000 1000 F 858 800 G 658 1058 600 <Suction filter box built-in-specification> 1500 1300 1000 H 800 J 600 7 9 11 14 16 ø9.52 ø12.7 ø6.35 ø15.88 2 Liquid pipe 1 Gas pipe Model PEFY-M140VMA-A PEFY-M100,125VMA-A PEFY-M71,80VMA-A PEFY-M40,50VMA-A PEFY-M20,25,32VMA-A PEFY-M63VMA-A PAC-KE91TB-E PAC-KE92TB-E PAC-KE93TB-E PAC-KE94TB-E PAC-KE95TB-E 3 Filter box PAC-KE92TB-E Top Bottom Piping side view Inlet air side view Top view 250 40 33 122 D (Duct) 20 15 G (Duct) 21 100 57 73 10 A B (Suspension bolt pitch) C 23 643 (Suspension bolt pitch) 178 (Duct) 23 10 238 32 700 136 67 356 100 41 217 100 30 100×(E-1)=F 65 0 -10 Less than 300mm Less than 700mm 40 58 29 100×(H-1)=J 10 100 911 153 26 20 208(Duct) 104 10 0000006347.BOOK 10 ページ 2021年7月13日 火曜日 午前9時52分
  • 12.
    MEES21K075 PEFY-M-VMA(L)-A 11 2. EXTERNAL DIMENSIONSCeiling concealed (Medium static pressure type) PEFY-M20, 25, 32, 40, 50, 63, 71, 80, 100, 125, 140VMA-A Suction filter box built-in-specification Unit: mm P Min.480mm 853 50 50 628 853 Min.480mm 853 450 628 Min.10mm Min.10mm 450 450 L 50~150 Min.480mm 450 450 450 50 50 960 960 M N K K K Min.300mm Min.20mm Maintenance access space Maintenance access space Maintenance access space Access door 3 Access door 4 Access door 2 (450×450) Ceiling Ceiling A B Fig.3 Fig.4 Fig.2 Fig.1 Fig.5 (Viewed from the direction of the arrow A) *In case of side maintenance for air filter. *In case of side maintenance for air filter. More than 200 More than 200 (Viewed from the direction of the arrow B) (Viewed from the direction of the arrow B) Intake air Intake air Supply air Supply air Access door 2 (450×450) Access door 3 Ceiling beam Ceiling beam Bottom of indoor unit Bottom of indoor unit Bottom of indoor unit 250~300 250~300 Access door 1 (450×450) Access door 1 (450×450) Control box Control box Control box Control box Control box <Suction filter box built-in-specification> [Maintenance access space] Secure enough access space to allow for the maintenance, inspection, and replacement of the motor, fan, drain pump, heat exchanger, and control box in one of the following ways. Select an installation site for the indoor unit so that its maintenance access space will not be obstructed by beams or other objects. (1) When a space of 300mm or more is available below the unit between the unit and the ceiling. (Fig.1) · Create access door 1 and 2 (450×450mm each) as shown in Fig.2. (Access door 2 is not required if enough space is available below the unit for a maintenance worker to work in.) (2) When a space of less than 300mm is available below the unit between the unit and the ceiling. (At least 20mm of space should be left below the unit as shown in Fig.3.) · Create access door 1 diagonally below the control box and access door 3 below the unit as shown in Fig.4. or · Create access door 4 below the control box and the unit as shown in Fig.5. PEFY-M20, 25, 32VMA-A PEFY-M40, 50, 63VMA-A PEFY-M71, 80VMA-A PEFY-M100, 125VMA-A PEFY-M140VMA-A Model 2550 2150 1850 1450 900 150~250 1000 1500 1100 1400 1600 250~350 400~500 500~600 1200 1500 1700 1700 2000 2200 K L M N P * 700 50~150 800 1300 * Dimension 'P' is in case of side maintenance for air filter. 0000006347.BOOK 11 ページ 2021年7月13日 火曜日 午前9時52分
  • 13.
    MEES21K075 PEFY-M-VMA(L)-A 12 2. EXTERNAL DIMENSIONSCeiling concealed (Medium static pressure type) PEFY-M20, 25, 32, 40, 50, 63, 71, 80, 100, 125, 140VMAL-A Unit: mm Control box 2×2-ø2.9 Air outlet Air inlet 2×E-ø2.9 Refrigerant piping Brazing connection (liquid) 2 1 Refrigerant piping Brazing connection (gas) Air Filter Terminal block (Power source) Terminal block (Transmission) Drain pipe (O.D.ø32) Suspension bolt hole 4-14×30 Slot <Accessory> Drain hose (I.D.ø32) (Actual length) Note 1.Use M10 screw for the Suspension bolt (field supply). 2.Keep the service space for the maintenance at the bottom. 3.This chart indicates for PEFY-M71·80VMAL-A models, which have 2 fans.PEFY-M20·25·32VMAL-A models have 1 fan. PEFY-M40·50·63VMAL-A models have 2 fans. PEFY-M100·125·140VMAL-A models have 3 fans. 4.In case of the inlet duct is used, remove the air filter (supply withthe unit), then install the filter (field supply) at suction side. ø9.52 ø12.7 ø6.35 ø15.88 2 Liquid pipe 1 Gas pipe 1558 1358 1500 1300 7 Model A 660 800 1200 700 754 900 954 860 9 E 11 D 1060 C 1100 B 1154 PEFY-M140VMAL-A PEFY-M100, 125VMAL-A PEFY-M71, 80VMAL-A PEFY-M40, 50VMAL-A PEFY-M20, 25, 32VMAL-A 1400 1600 1454 1654 1500 1700 1360 1560 14 16 1000 1000 F 858 800 G 658 1058 600 900 954 860 9 PEFY-M63VMAL-A 1000 858 800 Top Bottom Piping side view Top view Inlet air side view Outlet air side view 250 40 33 122 D (Duct) 20 210 18 G 21 100 57 73 10 A B (Suspension bolt pitch) C 23 643 (Suspension bolt pitch) 178(Duct) 23 10 32 700 732 136 67 356 100 217 100 30 100×(E-1)=F 15 24 32 0 -10 0000006347.BOOK 12 ページ 2021年7月13日 火曜日 午前9時52分
  • 14.
    MEES21K075 PEFY-M-VMA(L)-A 13 2. EXTERNAL DIMENSIONSCeiling concealed (Medium static pressure type) PEFY-M20, 25, 32, 40, 50, 63, 71, 80, 100, 125, 140VMAL-A Unit: mm J×(L-1)=M J H 6 K J H 112 11 112 700 700 475 Min.10mm 475 Min.10mm 450 450 50 Q 50~150 450 Min.300mm 450 450 450 50 Min.300mm 50 700 777 777 R S P P P Min.300mm Min.300mm Min.20mm 50 N-ø2.9 Maintenance access space Maintenance access space Maintenance access space Access door 3 Access door 4 Access door 2 (450×450) Ceiling Ceiling A B Fig.3 Fig.4 Fig.2 Fig.1 Fig.5 (Viewed from the direction of the arrow A) (Viewed from the direction of the arrow B) (Viewed from the direction of the arrow B) Intake air Intake air Supply air Supply air Access door 2 (450×450) Access door 3 Ceiling beam Ceiling beam Bottom of indoor unit Bottom of indoor unit Bottom of indoor unit 100~200 100~200 Access door 1 (450×450) Access door 1 (450×450) Control box Control box Control box Control box Control box [Maintenance access space] Secure enough access space to allow for the maintenance, inspection, and replacement of the motor, fan, heat exchanger, and control box in one of the following ways. Select an installation site for the indoor unit so that its maintenance access space will not be obstructed by beams or other objects. (1) When a space of 300mm or more is available below the unit between the unit and the ceiling. (Fig.1) · Create access door 1 and 2 (450×450mm each) as shown in Fig.2. (Access door 2 is not required if enough space is available below the unit for a maintenance worker to work in.) (2) When a space of less than 300mm is available below the unit between the unit and the ceiling. (At least 20mm of space should be left below the unit as shown in Fig.3.) · Create access door 1 diagonally below the control box and access door 3 below the unit as shown in Fig.4. or · Create access door 4 below the control box and the unit as shown in Fig.5. Model PEFY-M20, 25, 32VMAL-A PEFY-M40, 50, 63VMAL-A PEFY-M71, 80VMAL-A PEFY-M100, 125VMAL-A PEFY-M140VMAL-A 12 H 12 1480 1280 5 5 370 320 54 54 330 K 49 L 4 M 990 N 10 10 780 4 260 54 150 44 300 J 10 900 150〜250 1000 1500 1100 1400 1600 250〜350 400〜500 500〜600 1200 1500 1700 1700 2000 2200 P Q R S 700 50〜150 800 1300 0000006347.BOOK 13 ページ 2021年7月13日 火曜日 午前9時52分
  • 15.
    MEES21K075 PEFY-M-VMA(L)-A 14 2. EXTERNAL DIMENSIONSCeiling concealed (Medium static pressure type) PEFY-M20, 25, 32, 40, 50, 63, 71, 80, 100, 125, 140VMAL-A Suction filter box built-in-specification Unit: mm 250 40 33 122 D (Duct) 20 15 G (Duct) 21 100 57 73 10 A B (Suspension bolt pitch) C 23 643 (Suspension bolt pitch) 178(Duct) 23 10 32 700 136 67 356 100 217 100 30 100×(E-1)=F 32 0 -10 24 10 100×(H-1)=J 100 29 2×H-ø2.9 104 911 26 153 208(Duct) 20 10 2×2-ø2.9 Air outlet 2×E-ø2.9 Refrigerant piping Brazing connection (liquid) 2 1 Refrigerant piping Brazing connection (gas) Drain pipe (O.D.ø32) Suspension bolt hole 4-14×30 Slot <Accessory> Drain hose (I.D.ø32) (Actual length) Air Filter Air inlet Control box Filter box 2×1-ø2.9 3 Terminal block (Power source) Terminal block (Transmission) Air Filter 1558 1358 1500 1300 7 Model A 660 800 1200 700 754 900 954 860 9 E 11 D 1060 C 1100 B 1154 PEFY-M140VMAL-A PEFY-M100, 125VMAL-A PEFY-M71, 80VMAL-A PEFY-M40, 50, 63VMAL-A PEFY-M20, 25, 32VMAL-A 1400 1600 1454 1654 1500 1700 1360 1560 14 16 1000 1000 F 858 800 G 658 1058 600 <Suction filter box built-in-specification> 1500 1300 1000 H 800 J 600 7 9 11 14 16 ø9.52 ø12.7 ø6.35 ø15.88 2 Liquid pipe 1 Gas pipe Model PEFY-M140VMAL-A PEFY-M100, 125VMAL-A PEFY-M71, 80VMAL-A PEFY-M40, 50VMAL-A PEFY-M20, 25, 32VMAL-A PEFY-M63VMAL-A PAC-KE91TB-E PAC-KE92TB-E PAC-KE93TB-E PAC-KE94TB-E PAC-KE95TB-E 3 Filter box PAC-KE92TB-E Top view Inlet air side view Top Bottom Piping side view Note 1.Use M10 screw for the Suspension bolt (field supply). 2.Keep the service space for the maintenance at the bottom. 3.This chart indicates for PEFY-M71·80VMAL-A models, which have 2 fans.PEFY-M20·25·32VMAL-A models have 1 fan. PEFY-M40·50·63VMAL-A models have 2 fans. PEFY-M100·125·140VMAL-A models have 3 fans. 4.Use air filter installed with indoor unit. 0000006347.BOOK 14 ページ 2021年7月13日 火曜日 午前9時52分
  • 16.
    MEES21K075 PEFY-M-VMA(L)-A 15 2. EXTERNAL DIMENSIONSCeiling concealed (Medium static pressure type) PEFY-M20, 25, 32, 40, 50, 63, 71, 80, 100, 125, 140VMAL-A Suction filter box built-in-specification Unit: mm P Min.480mm 853 50 50 628 853 Min.480mm 853 450 628 Min.10mm Min.10mm 450 450 L 50~150 Min.480mm 450 450 450 50 50 960 960 M N K K K Min.300mm Min.20mm Maintenance access space Maintenance access space Maintenance access space Access door 3 Access door 4 Access door 2 (450×450) Ceiling Ceiling A B Fig.3 Fig.4 Fig.2 Fig.1 Fig.5 (Viewed from the direction of the arrow A) * In case of side maintenance for air filter. * In case of side maintenance for air filter. More than 200 More than 200 (Viewed from the direction of the arrow B) (Viewed from the direction of the arrow B) Intake air Intake air Supply air Supply air Access door 2 (450×450) Access door 3 Ceiling beam Ceiling beam Bottom of indoor unit Bottom of indoor unit Bottom of indoor unit 250~300 250~300 Access door 1 (450×450) Access door 1 (450×450) Control box Control box Control box Control box Control box <Suction filter box built-in-specification> [Maintenance access space] Secure enough access space to allow for the maintenance, inspection, and replacement of the motor, fan, heat exchanger, and control box in one of the following ways. Select an installation site for the indoor unit so that its maintenance access space will not be obstructed by beams or other objects. (1) When a space of 300mm or more is available below the unit between the unit and the ceiling. (Fig.1) · Create access door 1 and 2 (450×450mm each) as shown in Fig.2. (Access door 2 is not required if enough space is available below the unit for a maintenance worker to work in.) (2) When a space of less than 300mm is available below the unit between the unit and the ceiling. (At least 20mm of space should be left below the unit as shown in Fig.3.) · Create access door 1 diagonally below the control box and access door 3 below the unit as shown in Fig.4. or · Create access door 4 below the control box and the unit as shown in Fig.5. PEFY-M20, 25, 32VMAL-A PEFY-M40, 50, 63VMAL-A PEFY-M71, 80VMAL-A PEFY-M100, 125VMAL-A PEFY-M140VMAL-A Model 2550 2150 1850 1450 900 150~250 1000 1500 1100 1400 1600 250~350 400~500 500~600 1200 1500 1700 1700 2000 2200 K L M N P * 700 50~150 800 1300 * Dimension 'P' is in case of side maintenance for air filter. 0000006347.BOOK 15 ページ 2021年7月13日 火曜日 午前9時52分
  • 17.
    MEES21K075 PEFY-M-VMA(L)-A 16 3. CENTER OFGRAVITY Ceiling concealed (Medium static pressure type) 3. CENTER OF GRAVITY Model name PEFY-M20VMA(L)-A PEFY-M25VMA(L)-A PEFY-M32VMA(L)-A PEFY-M40VMA(L)-A PEFY-M50VMA(L)-A PEFY-M63VMA(L)-A PEFY-M71VMA(L)-A PEFY-M80VMA(L)-A PEFY-M100VMA(L)-A PEFY-M125VMA(L)-A W 643 [25 - 6/16] 643 [25 - 6/16] 643 [25 - 6/16] 643 [25 - 6/16] 643 [25 - 6/16] 643 [25 - 6/16] 643 [25 - 6/16] 643 [25 - 6/16] 643 [25 - 6/16] 643 [25 - 6/16] L 754 [29 - 11/16] 754 [29 - 11/16] 754 [29 - 11/16] 954 [37 - 9/16] 954 [37 - 9/16] 954 [37 - 9/16] 1154 [45 - 7/16] 1154 [45 - 7/16] 1454 [57 - 4/16] 1454 [57 - 4/16] X 330 [13] 330 [13] 330 [13] 340 [13 - 7/16] 340 [13 - 7/16] 340 [13 - 7/16] 325 [12 - 13/16] 325 [12 - 13/16] 330 [13] 330 [13] Y 300 [11 -13/16] 300 [11 -13/16] 300 [11 -13/16] 375 [14 -13/16] 375 [14 -13/16] 375 [14 -13/16] 525 [20 -11/16] 525 [20 -11/16] 675 [26 -10/16] 675 [26 -10/16] Z 130 [5 -2/16] 130 [5 -2/16] 130 [5 -2/16] 130 [5 -2/16] 130 [5 -2/16] 130 [5 -2/16] 130 [5 -2/16] 130 [5 -2/16] 130 [5 -2/16] 130 [5 -2/16] PEFY-M140VMA(L)-A 643 [25 - 6/16] 1654 [65 - 2/16] 332 [13 - 2/16] 725 [28 -9/16] 130 [5 -2/16] A : Center of gravity Y X L W A Z PEFY-M20, 25, 32, 40, 50, 63, 71, 80, 100, 125, 140VMA(L)-A (mm) [in] 0000006347.BOOK 16 ページ 2021年7月13日 火曜日 午前9時52分
  • 18.
    MEES21K075 PEFY-M-VMA(L)-A 17 4. ELECTRICAL WIRINGDIAGRAMS Ceiling concealed (Medium static pressure type) 4. ELECTRICAL WIRING DIAGRAMS PEFY-M20, 25, 32, 40, 50, 63, 71, 80, 100, 125, 140VMA(L)-A L N OFF ON CND (Red) CNMF1 INSIDE SECTION OF CONTROL BOX SWE TB2 3 CNP LED1 POWER SUPPLY AC220,230,240V 50Hz M1 M2 3 1 7 S CN2M (Blue) 1 1 2 TB15 1 CN3A (Blue) 3 5 6 7 8 9 0 1 2 3 4 SW12 (10ths digit) SW1 SW2 SW3 SW4 SW21 SW22 CN20 (Red) 6 CN60 4 3 2 1 DP M 3~ LEV M (SHEILD) TB5 TO NEXT INDOOR UNIT BREAKER(16A) FUSE(16A) PULL BOX TO MA REMOTE CONTROLLER TO OUTDOOR UNIT BC CONTROLLER REMOTE CONTROLLER MF M 3~ 1 CNACL (Black) SA U U ZNR001 ZNR002 F1 CN51 CN52 (Green) CN32 *ONLY FOR PEFY-M·VMA-A CN105 (Red) 0 9 8 7 6 5 4 3 2 1 SW11 (1s digit) 0 8 7 6 5 4 3 2 1 SW14 (BRANCH No.) F E D C B A 9 LED2 CN90 FS 3 CN44 4 1 2 TH22 3 4 1 2 *FOR PEFY-M·VMAL-A CN2A (Black) ACL I.B. CN41 CN4F 3 4 1 2 1 2 4 1 3 5 2 DC280-340V Rectifier circuit CN27 (Red) F2 CN22 (Green) CN4F TH23 TH21 5 6 7 4 1 5 6 2 1 ACL SYMBOL SYMBOL EXPLANATION NAME AC reactor(Power factor improvement) Drain Pump Float switch Power source terminal block Transmission terminal block Transmission terminal block Thermistor (inlet air temp. detection) Thermistor (piping temp.detection/liquid) Thermistor (piping temp.detection/gas) DP FS TB2 TB5 TB15 TH21 TH22 TH23 CN2A Connector (0-10V Analog input) CN32 Connector (Remote switch) CN41 Connector (HA terminal-A) CN51 Connector (Centrally control) CN52 Connector (Remote indication) CN90 Connector (Wireless) CN105 Connector (IT terminal) SW1 Switch (for mode selection) SW2 Switch (for capacity code) SW3 Switch (for mode selection) SW14 Switch (BRANCH No.) SW21 Switch (for static pressure selection) SW22 Switch (Wireless pair No.) SWE Connector (emergency operation) LED1 LED(Power supply) LED2 LED(Remote controller supply) SYMBOL NAME SYMBOL NAME SA Arrester F1 Fuse AC250V 6.3A ZNR001,002 Varistor SW4 Switch (for model selection) SW11 Switch (1s digit address set) SW12 Switch (10ths digit address set) I.B. Indoor controller board I.B. Indoor controller board Linear expansion valve LEV Fuse DC400V 3A F2 CN27 Connector (Damper) Fan Motor MF CN22 Connector (Optional Thermistor) NOTE)1.Symbols used in wiring diagram are : Connector, : Terminal, (Heavy dotted line): Field wiring, 2.Have all electric work done by a licensed electrician according to the local regulations. 3.Earth leakage circuit breaker should be set up on the wiring of the power supply. 4.To perform a drainage test for the drain pump turn on the SWE on the control board while the indoor unit is being powered. *Be sure to turn off the SWE after completing a drainage test or test run. t° t° t° 0000006347.BOOK 17 ページ 2021年7月13日 火曜日 午前9時52分
  • 19.
    MEES21K075 PEFY-M-VMA(L)-A 18 5. SOUND LEVELSCeiling concealed (Medium static pressure type) 5. SOUND LEVELS 5-1. Sound levels 5-1-1. Sound levels (Measured point: With 1m air inlet duct and 2m air outlet duct) 5-1-2. Sound levels (Measured point: With 2m air inlet duct and 2m air outlet duct) Sound level at anechoic room: Low-Mid-High Model Sound level dB (A) 35Pa 40Pa 50Pa 70Pa 100Pa 150Pa PEFY-M20, 25VMA(L)-A 21-25-27 - 23-26-29 22-27-30 24-30-33 28-34-38 PEFY-M32VMA(L)-A 23-27-30 - 24-28-33 25-30-34 27-32-35 31-35-39 PEFY-M40VMA(L)-A 23-28-31 - 24-31-33 27-31-35 29-33-37 32-37-41 PEFY-M50VMA(L)-A 24-31-34 - 28-32-36 28-33-38 31-36-40 33-38-42 PEFY-M63VMA(L)-A 27-31-35 - 30-33-38 30-35-39 32-37-41 35-40-44 PEFY-M71, 80VMA(L)-A - 25-31-34 29-32-35 29-33-37 30-35-39 33-39-42 PEFY-M100VMA(L)-A - 30-35-38 31-36-39 33-38-41 35-40-43 37-43-46 PEFY-M125VMA(L)-A - 33-37-39 34-38-40 34-39-41 35-40-42 38-43-45 PEFY-M140VMA(L)-A - 33-37-39 33-37-40 34-38-40 35-39-42 37-41-45 Sound level at anechoic room: Low-Mid-High Model Sound level dB (A) 35Pa 40Pa 50Pa 70Pa 100Pa 150Pa PEFY-M20, 25VMA(L)-A 18-22-24 - 20-23-26 19-24-27 21-27-30 25-31-35 PEFY-M32VMA(L)-A 20-24-27 - 21-25-30 22-27-31 24-29-32 28-32-36 PEFY-M40VMA(L)-A 20-25-28 - 21-28-30 24-28-32 26-30-34 29-34-38 PEFY-M50VMA(L)-A 21-28-31 - 25-29-33 25-30-35 28-33-37 30-35-39 PEFY-M63VMA(L)-A 24-28-32 - 27-30-35 27-32-36 29-34-38 32-37-41 PEFY-M71, 80VMA(L)-A - 22-28-31 26-29-32 26-30-34 27-32-36 30-36-39 PEFY-M100VMA(L)-A - 27-32-35 28-33-36 30-35-38 32-37-40 34-40-43 PEFY-M125VMA(L)-A - 30-34-36 31-35-37 31-36-38 32-37-39 35-40-42 PEFY-M140VMA(L)-A - 30-34-36 30-34-37 31-35-37 32-36-39 34-38-42 * Measured in anechoic room. PEFY-M-VMA(L)-A 2m 1m Aux. duct 1.5m Measurement location Measurement location Aux. duct * Measured in anechoic room. PEFY-M-VMA(L)-A 2m 2m 1.5m 0000006347.BOOK 18 ページ 2021年7月13日 火曜日 午前9時52分
  • 20.
    MEES21K075 PEFY-M-VMA(L)-A 19 5. SOUND LEVELSCeiling concealed (Medium static pressure type) 5-2. NC curves 5-2-1. NC curves (Sound level measured point: With 1m air inlet duct and 2m air outlet duct) 50 Power Source: 220-240V External Static Pressure: 35Pa [0.14in.WG] PEFY-M20,25VMA(L)-A 50Hz 50Hz Low 50Hz Middle High Octave band center frequencies (Hz) 20 - NC 30 - NC 40 - NC continuous noise audible limit on Approximate minimum Octave band pressure level (dB) 0dB=20μPa - NC 60 - NC 8k 4k 2k 1k 500 250 125 63 70.0 65.0 60.0 55.0 50.0 45.0 40.0 35.0 30.0 25.0 20.0 15.0 10.0 5.0 50 Power Source: 220-240V External Static Pressure: 50Pa [0.20in.WG] PEFY-M20,25VMA(L)-A 50Hz 50Hz Low 50Hz Middle High Octave band center frequencies (Hz) 20 - NC 30 - NC 40 - NC continuous noise audible limit on Approximate minimum Octave band pressure level (dB) 0dB=20μPa - NC 60 - NC 8k 4k 2k 1k 500 250 125 63 70.0 65.0 60.0 55.0 50.0 45.0 40.0 35.0 30.0 25.0 20.0 15.0 10.0 5.0 50 Power Source: 220-240V External Static Pressure: 70Pa [0.28in.WG] PEFY-M20,25VMA(L)-A 50Hz 50Hz Low 50Hz Middle High Octave band center frequencies (Hz) 20 - NC 30 - NC 40 - NC continuous noise audible limit on Approximate minimum Octave band pressure level (dB) 0dB=20μPa - NC 60 - NC 8k 4k 2k 1k 500 250 125 63 70.0 65.0 60.0 55.0 50.0 45.0 40.0 35.0 30.0 25.0 20.0 15.0 10.0 5.0 50 Power Source: 220-240V External Static Pressure: 100Pa [0.40in.WG] PEFY-M20,25VMA(L)-A 50Hz 50Hz Low 50Hz Middle High Octave band center frequencies (Hz) 20 - NC 30 - NC 40 - NC continuous noise audible limit on Approximate minimum Octave band pressure level (dB) 0dB=20μPa - NC 60 - NC 8k 4k 2k 1k 500 250 125 63 70.0 65.0 60.0 55.0 50.0 45.0 40.0 35.0 30.0 25.0 20.0 15.0 10.0 5.0 50 Power Source: 220-240V External Static Pressure: 150Pa [0.60in.WG] PEFY-M20,25VMA(L)-A 50Hz 50Hz Low 50Hz Middle High Octave band center frequencies (Hz) 20 - NC 30 - NC 40 - NC continuous noise audible limit on Approximate minimum Octave band pressure level (dB) 0dB=20μPa - NC 60 - NC 8k 4k 2k 1k 500 250 125 63 70.0 65.0 60.0 55.0 50.0 45.0 40.0 35.0 30.0 25.0 20.0 15.0 10.0 5.0 50 Power Source: 220-240V External Static Pressure: 35Pa [0.14in.WG] PEFY-M32VMA(L)-A 50Hz 50Hz Low 50Hz Middle High Octave band center frequencies (Hz) 20 - NC 30 - NC 40 - NC continuous noise audible limit on Approximate minimum Octave band pressure level (dB) 0dB=20μPa - NC 60 - NC 8k 4k 2k 1k 500 250 125 63 70.0 65.0 60.0 55.0 50.0 45.0 40.0 35.0 30.0 25.0 20.0 15.0 10.0 5.0 50 Power Source: 220-240V External Static Pressure: 50Pa [0.20in.WG] PEFY-M32VMA(L)-A 50Hz 50Hz Low 50Hz Middle High Octave band center frequencies (Hz) 20 - NC 30 - NC 40 - NC continuous noise audible limit on Approximate minimum Octave band pressure level (dB) 0dB=20μPa - NC 60 - NC 8k 4k 2k 1k 500 250 125 63 70.0 65.0 60.0 55.0 50.0 45.0 40.0 35.0 30.0 25.0 20.0 15.0 10.0 5.0 50 Power Source: 220-240V External Static Pressure: 70Pa [0.28in.WG] PEFY-M32VMA(L)-A 50Hz 50Hz Low 50Hz Middle High Octave band center frequencies (Hz) 20 - NC 30 - NC 40 - NC continuous noise audible limit on Approximate minimum Octave band pressure level (dB) 0dB=20μPa - NC 60 - NC 8k 4k 2k 1k 500 250 125 63 70.0 65.0 60.0 55.0 50.0 45.0 40.0 35.0 30.0 25.0 20.0 15.0 10.0 5.0 50 Power Source: 220-240V External Static Pressure: 100Pa [0.40in.WG] PEFY-M32VMA(L)-A 50Hz 50Hz Low 50Hz Middle High Octave band center frequencies (Hz) 20 - NC 30 - NC 40 - NC continuous noise audible limit on Approximate minimum Octave band pressure level (dB) 0dB=20μPa - NC 60 - NC 8k 4k 2k 1k 500 250 125 63 70.0 65.0 60.0 55.0 50.0 45.0 40.0 35.0 30.0 25.0 20.0 15.0 10.0 5.0 50 Power Source: 220-240V External Static Pressure: 150Pa [0.60in.WG] PEFY-M32VMA(L)-A 50Hz 50Hz Low 50Hz Middle High Octave band center frequencies (Hz) 20 - NC 30 - NC 40 - NC continuous noise audible limit on Approximate minimum Octave band pressure level (dB) 0dB=20μPa - NC 60 - NC 8k 4k 2k 1k 500 250 125 63 70.0 65.0 60.0 55.0 50.0 45.0 40.0 35.0 30.0 25.0 20.0 15.0 10.0 5.0 50 Power Source: 220-240V External Static Pressure: 35Pa [0.14in.WG] PEFY-M40VMA(L)-A 50Hz 50Hz Low 50Hz Middle High Octave band center frequencies (Hz) 20 - NC 30 - NC 40 - NC continuous noise audible limit on Approximate minimum Octave band pressure level (dB) 0dB=20μPa - NC 60 - NC 8k 4k 2k 1k 500 250 125 63 70.0 65.0 60.0 55.0 50.0 45.0 40.0 35.0 30.0 25.0 20.0 15.0 10.0 5.0 50 Power Source: 220-240V External Static Pressure: 50Pa [0.20in.WG] PEFY-M40VMA(L)-A 50Hz 50Hz Low 50Hz Middle High Octave band center frequencies (Hz) 20 - NC 30 - NC 40 - NC continuous noise audible limit on Approximate minimum Octave band pressure level (dB) 0dB=20μPa - NC 60 - NC 8k 4k 2k 1k 500 250 125 63 70.0 65.0 60.0 55.0 50.0 45.0 40.0 35.0 30.0 25.0 20.0 15.0 10.0 5.0 0000006347.BOOK 19 ページ 2021年7月13日 火曜日 午前9時52分
  • 21.
    MEES21K075 PEFY-M-VMA(L)-A 20 5. SOUND LEVELSCeiling concealed (Medium static pressure type) 50 Power Source: 220-240V External Static Pressure: 70Pa [0.28in.WG] PEFY-M40VMA(L)-A 50Hz 50Hz Low 50Hz Middle High Octave band center frequencies (Hz) 20 - NC 30 - NC 40 - NC continuous noise audible limit on Approximate minimum Octave band pressure level (dB) 0dB=20μPa - NC 60 - NC 8k 4k 2k 1k 500 250 125 63 70.0 65.0 60.0 55.0 50.0 45.0 40.0 35.0 30.0 25.0 20.0 15.0 10.0 5.0 50 Power Source: 220-240V External Static Pressure: 100Pa [0.40in.WG] PEFY-M40VMA(L)-A 50Hz 50Hz Low 50Hz Middle High Octave band center frequencies (Hz) 20 - NC 30 - NC 40 - NC continuous noise audible limit on Approximate minimum Octave band pressure level (dB) 0dB=20μPa - NC 60 - NC 8k 4k 2k 1k 500 250 125 63 70.0 65.0 60.0 55.0 50.0 45.0 40.0 35.0 30.0 25.0 20.0 15.0 10.0 5.0 50 Power Source: 220-240V External Static Pressure: 150Pa [0.60in.WG] PEFY-M40VMA(L)-A 50Hz 50Hz Low 50Hz Middle High Octave band center frequencies (Hz) 20 - NC 30 - NC 40 - NC continuous noise audible limit on Approximate minimum Octave band pressure level (dB) 0dB=20μPa - NC 60 - NC 8k 4k 2k 1k 500 250 125 63 70.0 65.0 60.0 55.0 50.0 45.0 40.0 35.0 30.0 25.0 20.0 15.0 10.0 5.0 50 Power Source: 220-240V External Static Pressure: 35Pa [0.14in.WG] PEFY-M50VMA(L)-A 50Hz 50Hz Low 50Hz Middle High Octave band center frequencies (Hz) 20 - NC 30 - NC 40 - NC continuous noise audible limit on Approximate minimum Octave band pressure level (dB) 0dB=20μPa - NC 60 - NC 8k 4k 2k 1k 500 250 125 63 70.0 65.0 60.0 55.0 50.0 45.0 40.0 35.0 30.0 25.0 20.0 15.0 10.0 5.0 50 Power Source: 220-240V External Static Pressure: 50Pa [0.20in.WG] PEFY-M50VMA(L)-A 50Hz 50Hz Low 50Hz Middle High Octave band center frequencies (Hz) 20 - NC 30 - NC 40 - NC continuous noise audible limit on Approximate minimum Octave band pressure level (dB) 0dB=20μPa - NC 60 - NC 8k 4k 2k 1k 500 250 125 63 70.0 65.0 60.0 55.0 50.0 45.0 40.0 35.0 30.0 25.0 20.0 15.0 10.0 5.0 50 Power Source: 220-240V External Static Pressure: 70Pa [0.28in.WG] PEFY-M50VMA(L)-A 50Hz 50Hz Low 50Hz Middle High Octave band center frequencies (Hz) 20 - NC 30 - NC 40 - NC continuous noise audible limit on Approximate minimum Octave band pressure level (dB) 0dB=20μPa - NC 60 - NC 8k 4k 2k 1k 500 250 125 63 70.0 65.0 60.0 55.0 50.0 45.0 40.0 35.0 30.0 25.0 20.0 15.0 10.0 5.0 50 Power Source: 220-240V External Static Pressure: 100Pa [0.40in.WG] PEFY-M50VMA(L)-A 50Hz 50Hz Low 50Hz Middle High Octave band center frequencies (Hz) 20 - NC 30 - NC 40 - NC continuous noise audible limit on Approximate minimum Octave band pressure level (dB) 0dB=20μPa - NC 60 - NC 8k 4k 2k 1k 500 250 125 63 70.0 65.0 60.0 55.0 50.0 45.0 40.0 35.0 30.0 25.0 20.0 15.0 10.0 5.0 50 Power Source: 220-240V External Static Pressure: 150Pa [0.60in.WG] PEFY-M50VMA(L)-A 50Hz 50Hz Low 50Hz Middle High Octave band center frequencies (Hz) 20 - NC 30 - NC 40 - NC continuous noise audible limit on Approximate minimum Octave band pressure level (dB) 0dB=20μPa - NC 60 - NC 8k 4k 2k 1k 500 250 125 63 70.0 65.0 60.0 55.0 50.0 45.0 40.0 35.0 30.0 25.0 20.0 15.0 10.0 5.0 50 Power Source: 220-240V External Static Pressure: 35Pa [0.14in.WG] PEFY-M63VMA(L)-A 50Hz 50Hz Low 50Hz Middle High Octave band center frequencies (Hz) 20 - NC 30 - NC 40 - NC continuous noise audible limit on Approximate minimum Octave band pressure level (dB) 0dB=20μPa - NC 60 - NC 8k 4k 2k 1k 500 250 125 63 70.0 65.0 60.0 55.0 50.0 45.0 40.0 35.0 30.0 25.0 20.0 15.0 10.0 5.0 50 Power Source: 220-240V External Static Pressure: 50Pa [0.20in.WG] PEFY-M63VMA(L)-A 50Hz 50Hz Low 50Hz Middle High Octave band center frequencies (Hz) 20 - NC 30 - NC 40 - NC continuous noise audible limit on Approximate minimum Octave band pressure level (dB) 0dB=20μPa - NC 60 - NC 8k 4k 2k 1k 500 250 125 63 70.0 65.0 60.0 55.0 50.0 45.0 40.0 35.0 30.0 25.0 20.0 15.0 10.0 5.0 50 Power Source: 220-240V External Static Pressure: 70Pa [0.28in.WG] PEFY-M63VMA(L)-A 50Hz 50Hz Low 50Hz Middle High Octave band center frequencies (Hz) 20 - NC 30 - NC 40 - NC continuous noise audible limit on Approximate minimum Octave band pressure level (dB) 0dB=20μPa - NC 60 - NC 8k 4k 2k 1k 500 250 125 63 70.0 65.0 60.0 55.0 50.0 45.0 40.0 35.0 30.0 25.0 20.0 15.0 10.0 5.0 50 Power Source: 220-240V External Static Pressure: 100Pa [0.40in.WG] PEFY-M63VMA(L)-A 50Hz 50Hz Low 50Hz Middle High Octave band center frequencies (Hz) 20 - NC 30 - NC 40 - NC continuous noise audible limit on Approximate minimum Octave band pressure level (dB) 0dB=20μPa - NC 60 - NC 8k 4k 2k 1k 500 250 125 63 70.0 65.0 60.0 55.0 50.0 45.0 40.0 35.0 30.0 25.0 20.0 15.0 10.0 5.0 0000006347.BOOK 20 ページ 2021年7月13日 火曜日 午前9時52分
  • 22.
    MEES21K075 PEFY-M-VMA(L)-A 21 5. SOUND LEVELSCeiling concealed (Medium static pressure type) 50 Power Source: 220-240V External Static Pressure: 150Pa [0.60in.WG] PEFY-M63VMA(L)-A 50Hz 50Hz Low 50Hz Middle High Octave band center frequencies (Hz) 20 - NC 30 - NC 40 - NC continuous noise audible limit on Approximate minimum Octave band pressure level (dB) 0dB=20μPa - NC 60 - NC 8k 4k 2k 1k 500 250 125 63 70.0 65.0 60.0 55.0 50.0 45.0 40.0 35.0 30.0 25.0 20.0 15.0 10.0 5.0 50 Power Source: 220-240V External Static Pressure: 40Pa [0.16in.WG] PEFY-M71,80VMA(L)-A 50Hz 50Hz Low 50Hz Middle High Octave band center frequencies (Hz) 20 - NC 30 - NC 40 - NC continuous noise audible limit on Approximate minimum Octave band pressure level (dB) 0dB=20μPa - NC 60 - NC 8k 4k 2k 1k 500 250 125 63 70.0 65.0 60.0 55.0 50.0 45.0 40.0 35.0 30.0 25.0 20.0 15.0 10.0 5.0 50 Power Source: 220-240V External Static Pressure: 50Pa [0.20in.WG] PEFY-M71,80VMA(L)-A 50Hz 50Hz Low 50Hz Middle High Octave band center frequencies (Hz) 20 - NC 30 - NC 40 - NC continuous noise audible limit on Approximate minimum Octave band pressure level (dB) 0dB=20μPa - NC 60 - NC 8k 4k 2k 1k 500 250 125 63 70.0 65.0 60.0 55.0 50.0 45.0 40.0 35.0 30.0 25.0 20.0 15.0 10.0 5.0 50 Power Source: 220-240V External Static Pressure: 70Pa [0.28in.WG] PEFY-M71,80VMA(L)-A 50Hz 50Hz Low 50Hz Middle High Octave band center frequencies (Hz) 20 - NC 30 - NC 40 - NC continuous noise audible limit on Approximate minimum Octave band pressure level (dB) 0dB=20μPa - NC 60 - NC 8k 4k 2k 1k 500 250 125 63 70.0 65.0 60.0 55.0 50.0 45.0 40.0 35.0 30.0 25.0 20.0 15.0 10.0 5.0 50 Power Source: 220-240V External Static Pressure: 100Pa [0.40in.WG] PEFY-M71,80VMA(L)-A 50Hz 50Hz Low 50Hz Middle High Octave band center frequencies (Hz) 20 - NC 30 - NC 40 - NC continuous noise audible limit on Approximate minimum Octave band pressure level (dB) 0dB=20μPa - NC 60 - NC 8k 4k 2k 1k 500 250 125 63 70.0 65.0 60.0 55.0 50.0 45.0 40.0 35.0 30.0 25.0 20.0 15.0 10.0 5.0 50 Power Source: 220-240V External Static Pressure: 150Pa [0.60in.WG] PEFY-M71,80VMA(L)-A 50Hz 50Hz Low 50Hz Middle High Octave band center frequencies (Hz) 20 - NC 30 - NC 40 - NC continuous noise audible limit on Approximate minimum Octave band pressure level (dB) 0dB=20μPa - NC 60 - NC 8k 4k 2k 1k 500 250 125 63 70.0 65.0 60.0 55.0 50.0 45.0 40.0 35.0 30.0 25.0 20.0 15.0 10.0 5.0 50 Power Source: 220-240V External Static Pressure: 40Pa [0.16in.WG] PEFY-M100VMA(L)-A 50Hz 50Hz Low 50Hz Middle High Octave band center frequencies (Hz) 20 - NC 30 - NC 40 - NC continuous noise audible limit on Approximate minimum Octave band pressure level (dB) 0dB=20μPa - NC 60 - NC 8k 4k 2k 1k 500 250 125 63 70.0 65.0 60.0 55.0 50.0 45.0 40.0 35.0 30.0 25.0 20.0 15.0 10.0 5.0 50 Power Source: 220-240V External Static Pressure: 50Pa [0.20in.WG] PEFY-M100VMA(L)-A 50Hz 50Hz Low 50Hz Middle High Octave band center frequencies (Hz) 20 - NC 30 - NC 40 - NC continuous noise audible limit on Approximate minimum Octave band pressure level (dB) 0dB=20μPa - NC 60 - NC 8k 4k 2k 1k 500 250 125 63 70.0 65.0 60.0 55.0 50.0 45.0 40.0 35.0 30.0 25.0 20.0 15.0 10.0 5.0 50 Power Source: 220-240V External Static Pressure: 70Pa [0.28in.WG] PEFY-M100VMA(L)-A 50Hz 50Hz Low 50Hz Middle High Octave band center frequencies (Hz) 20 - NC 30 - NC 40 - NC continuous noise audible limit on Approximate minimum Octave band pressure level (dB) 0dB=20μPa - NC 60 - NC 8k 4k 2k 1k 500 250 125 63 70.0 65.0 60.0 55.0 50.0 45.0 40.0 35.0 30.0 25.0 20.0 15.0 10.0 5.0 50 Power Source: 220-240V External Static Pressure: 100Pa [0.40in.WG] PEFY-M100VMA(L)-A 50Hz 50Hz Low 50Hz Middle High Octave band center frequencies (Hz) 20 - NC 30 - NC 40 - NC continuous noise audible limit on Approximate minimum Octave band pressure level (dB) 0dB=20μPa - NC 60 - NC 8k 4k 2k 1k 500 250 125 63 70.0 65.0 60.0 55.0 50.0 45.0 40.0 35.0 30.0 25.0 20.0 15.0 10.0 5.0 50 Power Source: 220-240V External Static Pressure: 150Pa [0.60in.WG] PEFY-M100VMA(L)-A 50Hz 50Hz Low 50Hz Middle High Octave band center frequencies (Hz) 20 - NC 30 - NC 40 - NC continuous noise audible limit on Approximate minimum Octave band pressure level (dB) 0dB=20μPa - NC 60 - NC 8k 4k 2k 1k 500 250 125 63 70.0 65.0 60.0 55.0 50.0 45.0 40.0 35.0 30.0 25.0 20.0 15.0 10.0 5.0 50 Power Source: 220-240V External Static Pressure: 40Pa [0.16in.WG] PEFY-M125VMA(L)-A 50Hz 50Hz Low 50Hz Middle High Octave band center frequencies (Hz) 20 - NC 30 - NC 40 - NC continuous noise audible limit on Approximate minimum Octave band pressure level (dB) 0dB=20μPa - NC 60 - NC 8k 4k 2k 1k 500 250 125 63 70.0 65.0 60.0 55.0 50.0 45.0 40.0 35.0 30.0 25.0 20.0 15.0 10.0 5.0 0000006347.BOOK 21 ページ 2021年7月13日 火曜日 午前9時52分
  • 23.
    MEES21K075 PEFY-M-VMA(L)-A 22 5. SOUND LEVELSCeiling concealed (Medium static pressure type) 50 Power Source: 220-240V External Static Pressure: 50Pa [0.20in.WG] PEFY-M125VMA(L)-A 50Hz 50Hz Low 50Hz Middle High Octave band center frequencies (Hz) 20 - NC 30 - NC 40 - NC continuous noise audible limit on Approximate minimum Octave band pressure level (dB) 0dB=20μPa - NC 60 - NC 8k 4k 2k 1k 500 250 125 63 70.0 65.0 60.0 55.0 50.0 45.0 40.0 35.0 30.0 25.0 20.0 15.0 10.0 5.0 50 Power Source: 220-240V External Static Pressure: 70Pa [0.28in.WG] PEFY-M125VMA(L)-A 50Hz 50Hz Low 50Hz Middle High Octave band center frequencies (Hz) 20 - NC 30 - NC 40 - NC continuous noise audible limit on Approximate minimum Octave band pressure level (dB) 0dB=20μPa - NC 60 - NC 8k 4k 2k 1k 500 250 125 63 70.0 65.0 60.0 55.0 50.0 45.0 40.0 35.0 30.0 25.0 20.0 15.0 10.0 5.0 50 Power Source: 220-240V External Static Pressure: 100Pa [0.40in.WG] PEFY-M125VMA(L)-A 50Hz 50Hz Low 50Hz Middle High Octave band center frequencies (Hz) 20 - NC 30 - NC 40 - NC continuous noise audible limit on Approximate minimum Octave band pressure level (dB) 0dB=20μPa - NC 60 - NC 8k 4k 2k 1k 500 250 125 63 70.0 65.0 60.0 55.0 50.0 45.0 40.0 35.0 30.0 25.0 20.0 15.0 10.0 5.0 50 Power Source: 220-240V External Static Pressure: 150Pa [0.60in.WG] PEFY-M125VMA(L)-A 50Hz 50Hz Low 50Hz Middle High Octave band center frequencies (Hz) 20 - NC 30 - NC 40 - NC continuous noise audible limit on Approximate minimum Octave band pressure level (dB) 0dB=20μPa - NC 60 - NC 8k 4k 2k 1k 500 250 125 63 70.0 65.0 60.0 55.0 50.0 45.0 40.0 35.0 30.0 25.0 20.0 15.0 10.0 5.0 50 Power Source: 220-240V External Static Pressure: 40Pa [0.16in.WG] PEFY-M140VMA(L)-A 50Hz 50Hz Low 50Hz Middle High Octave band center frequencies (Hz) 20 - NC 30 - NC 40 - NC continuous noise audible limit on Approximate minimum Octave band pressure level (dB) 0dB=20μPa - NC 60 - NC 8k 4k 2k 1k 500 250 125 63 70.0 65.0 60.0 55.0 50.0 45.0 40.0 35.0 30.0 25.0 20.0 15.0 10.0 5.0 50 Power Source: 220-240V External Static Pressure: 50Pa [0.20in.WG] PEFY-M140VMA(L)-A 50Hz 50Hz Low 50Hz Middle High Octave band center frequencies (Hz) 20 - NC 30 - NC 40 - NC continuous noise audible limit on Approximate minimum Octave band pressure level (dB) 0dB=20μPa - NC 60 - NC 8k 4k 2k 1k 500 250 125 63 70.0 65.0 60.0 55.0 50.0 45.0 40.0 35.0 30.0 25.0 20.0 15.0 10.0 5.0 50 Power Source: 220-240V External Static Pressure: 70Pa [0.28in.WG] PEFY-M140VMA(L)-A 50Hz 50Hz Low 50Hz Middle High Octave band center frequencies (Hz) 20 - NC 30 - NC 40 - NC continuous noise audible limit on Approximate minimum Octave band pressure level (dB) 0dB=20μPa - NC 60 - NC 8k 4k 2k 1k 500 250 125 63 70.0 65.0 60.0 55.0 50.0 45.0 40.0 35.0 30.0 25.0 20.0 15.0 10.0 5.0 50 Power Source: 220-240V External Static Pressure: 100Pa [0.40in.WG] PEFY-M140VMA(L)-A 50Hz 50Hz Low 50Hz Middle High Octave band center frequencies (Hz) 20 - NC 30 - NC 40 - NC continuous noise audible limit on Approximate minimum Octave band pressure level (dB) 0dB=20μPa - NC 60 - NC 8k 4k 2k 1k 500 250 125 63 70.0 65.0 60.0 55.0 50.0 45.0 40.0 35.0 30.0 25.0 20.0 15.0 10.0 5.0 50 Power Source: 220-240V External Static Pressure: 150Pa [0.60in.WG] PEFY-M140VMA(L)-A 50Hz 50Hz Low 50Hz Middle High Octave band center frequencies (Hz) 20 - NC 30 - NC 40 - NC continuous noise audible limit on Approximate minimum Octave band pressure level (dB) 0dB=20μPa - NC 60 - NC 8k 4k 2k 1k 500 250 125 63 70.0 65.0 60.0 55.0 50.0 45.0 40.0 35.0 30.0 25.0 20.0 15.0 10.0 5.0 0000006347.BOOK 22 ページ 2021年7月13日 火曜日 午前9時52分
  • 24.
    MEES21K075 PEFY-M-VMA(L)-A 23 6. FAN CHARACTERISTICSCURVES Ceiling concealed (Medium static pressure type) 6. FAN CHARACTERISTICS CURVES PEFY-M20, 25VMA(L)-A External static pressure : 50Pa Power source : 220-240V PEFY-M20, 25VMA(L)-A External static pressure : 35Pa Power source : 220-240V PEFY-M20, 25VMA(L)-A External static pressure : 100Pa Power source : 220-240V PEFY-M20, 25VMA(L)-A External static pressure : 70Pa Power source : 220-240V PEFY-M20, 25VMA(L)-A External static pressure : 150Pa Power source : 220-240V Airflow rate (m3 /min) External static pressure (Pa) 0 20 40 60 5 7 9 11 5 7 9 11 5 7 9 11 5 7 9 11 5 7 9 11 Airflow rate (m3 /min) External static pressure (Pa) 0 40 20 60 80 Airflow rate (m3 /min) External static pressure (Pa) 0 60 40 80 100 Airflow rate (m3 /min) External static pressure (Pa) 0 80 100 40 60 20 120 Airflow rate (m3 /min) External static pressure (Pa) 0 140 120 100 80 60 40 20 160 180 20 High Middle Low Limit High Middle Low Limit High Middle Low Limit High Middle Low Limit High Middle Low Limit Limit Limit Limit Limit Limit Plasma Quad Connect Plasma Quad Connect Plasma Quad Connect Plasma Quad Connect Plasma Quad Connect 0000006347.BOOK 23 ページ 2021年7月13日 火曜日 午前9時52分
  • 25.
    MEES21K075 PEFY-M-VMA(L)-A 24 6. FAN CHARACTERISTICSCURVES Ceiling concealed (Medium static pressure type) PEFY-M32VMA(L)-A External static pressure : 50Pa Power source : 220-240V PEFY-M32VMA(L)-A External static pressure : 35Pa Power source : 220-240V PEFY-M32VMA(L)-A External static pressure : 100Pa Power source : 220-240V PEFY-M32VMA(L)-A External static pressure : 70Pa Power source : 220-240V PEFY-M32VMA(L)-A External static pressure : 150Pa Power source : 220-240V Airflow rate (m3 /min) External static pressure (Pa) 0 20 40 60 6 8 10 12 6 8 10 12 6 8 10 12 6 8 10 12 6 8 10 12 Airflow rate (m3 /min) External static pressure (Pa) 0 40 20 60 80 Airflow rate (m3 /min) External static pressure (Pa) 0 60 40 80 100 Airflow rate (m3 /min) External static pressure (Pa) 0 80 100 40 60 20 120 Airflow rate (m3 /min) External static pressure (Pa) 0 140 120 100 80 60 40 20 160 180 20 High Middle Low Limit High Middle Low Limit High Middle Low Limit High Middle Low Limit High Middle Low Limit Limit Limit Limit Limit Limit Plasma Quad Connect Plasma Quad Connect Plasma Quad Connect Plasma Quad Connect Plasma Quad Connect 0000006347.BOOK 24 ページ 2021年7月13日 火曜日 午前9時52分
  • 26.
    MEES21K075 PEFY-M-VMA(L)-A 25 6. FAN CHARACTERISTICSCURVES Ceiling concealed (Medium static pressure type) PEFY-M40VMA(L)-A External static pressure : 50Pa Power source : 220-240V PEFY-M40VMA(L)-A External static pressure : 35Pa Power source : 220-240V PEFY-M40VMA(L)-A External static pressure : 100Pa Power source : 220-240V PEFY-M40VMA(L)-A External static pressure : 70Pa Power source : 220-240V PEFY-M40VMA(L)-A External static pressure : 150Pa Power source : 220-240V Airflow rate (m3 /min) External static pressure (Pa) 0 20 40 60 8 14 16 10 12 8 14 16 10 12 8 14 16 10 12 8 14 16 10 12 8 14 16 10 12 Airflow rate (m3 /min) External static pressure (Pa) 0 40 20 60 80 Airflow rate (m3 /min) External static pressure (Pa) 0 60 40 80 100 Airflow rate (m3 /min) External static pressure (Pa) 0 80 100 40 60 20 120 Airflow rate (m3 /min) External static pressure (Pa) 0 140 120 100 80 60 40 20 160 180 20 High Middle Low Limit High Middle Low Limit High Middle Low Limit High Middle Low Limit High Middle Low Limit Limit Limit Limit Limit Limit Plasma Quad Connect Plasma Quad Connect Plasma Quad Connect Plasma Quad Connect Plasma Quad Connect 0000006347.BOOK 25 ページ 2021年7月13日 火曜日 午前9時52分
  • 27.
    MEES21K075 PEFY-M-VMA(L)-A 26 6. FAN CHARACTERISTICSCURVES Ceiling concealed (Medium static pressure type) PEFY-M50VMA(L)-A External static pressure : 50Pa Power source : 220-240V PEFY-M50VMA(L)-A External static pressure : 35Pa Power source : 220-240V PEFY-M50VMA(L)-A External static pressure : 100Pa Power source : 220-240V PEFY-M50VMA(L)-A External static pressure : 70Pa Power source : 220-240V PEFY-M50VMA(L)-A External static pressure : 150Pa Power source : 220-240V Airflow rate (m3 /min) External static pressure (Pa) 0 20 40 60 8 14 16 18 20 10 12 8 14 16 18 20 10 12 8 14 16 18 20 10 12 8 14 16 18 20 10 12 8 14 16 18 20 10 12 Airflow rate (m3 /min) External static pressure (Pa) 0 40 20 60 80 Airflow rate (m3 /min) External static pressure (Pa) 0 60 40 80 100 Airflow rate (m3 /min) External static pressure (Pa) 0 80 100 40 60 20 140 120 Airflow rate (m3 /min) External static pressure (Pa) 0 140 120 100 80 60 40 20 160 180 20 High Middle Low Limit High Middle Low Limit High Middle Low Limit High Middle Low Limit High Middle Low Limit Limit Limit Limit Limit Limit Plasma Quad Connect Plasma Quad Connect Plasma Quad Connect Plasma Quad Connect Plasma Quad Connect 0000006347.BOOK 26 ページ 2021年7月13日 火曜日 午前9時52分
  • 28.
    MEES21K075 PEFY-M-VMA(L)-A 27 6. FAN CHARACTERISTICSCURVES Ceiling concealed (Medium static pressure type) PEFY-M63VMA(L)-A External static pressure : 50Pa Power source : 220-240V PEFY-M63VMA(L)-A External static pressure : 35Pa Power source : 220-240V PEFY-M63VMA(L)-A External static pressure : 100Pa Power source : 220-240V PEFY-M63VMA(L)-A External static pressure : 70Pa Power source : 220-240V PEFY-M63VMA(L)-A External static pressure : 150Pa Power source : 220-240V Airflow rate (m3 /min) External static pressure (Pa) 0 20 40 60 11 17 19 21 23 13 15 11 17 19 21 23 13 15 11 17 19 21 23 13 15 11 17 19 21 23 13 15 11 17 19 21 23 13 15 Airflow rate (m3 /min) External static pressure (Pa) 0 40 20 60 80 Airflow rate (m3 /min) External static pressure (Pa) 0 60 40 80 100 Airflow rate (m3 /min) External static pressure (Pa) 0 80 100 40 60 20 140 120 Airflow rate (m3 /min) External static pressure (Pa) 0 140 120 100 80 60 40 20 160 180 20 High Middle Low Limit High Middle Low Limit High Middle Low Limit High Middle Low Limit High Middle Low Limit Limit Limit Limit Limit Limit Plasma Quad Connect Plasma Quad Connect Plasma Quad Connect Plasma Quad Connect Plasma Quad Connect 0000006347.BOOK 27 ページ 2021年7月13日 火曜日 午前9時52分
  • 29.
    MEES21K075 PEFY-M-VMA(L)-A 28 6. FAN CHARACTERISTICSCURVES Ceiling concealed (Medium static pressure type) PEFY-M71, 80VMA(L)-A External static pressure : 50Pa Power source : 220-240V PEFY-M71, 80VMA(L)-A External static pressure : 40Pa Power source : 220-240V PEFY-M71, 80VMA(L)-A External static pressure : 100Pa Power source : 220-240V PEFY-M71, 80VMA(L)-A External static pressure : 70Pa Power source : 220-240V PEFY-M71, 80VMA(L)-A External static pressure : 150Pa Power source : 220-240V Airflow rate (m3 /min) External static pressure (Pa) 0 20 40 60 12 18 26 14 16 22 20 24 12 18 26 14 16 22 20 24 12 18 26 14 16 22 20 24 12 18 26 14 16 22 20 24 12 18 26 14 16 22 20 24 Airflow rate (m3 /min) External static pressure (Pa) 0 40 20 60 80 Airflow rate (m3 /min) External static pressure (Pa) 0 60 40 80 100 Airflow rate (m3 /min) External static pressure (Pa) 0 80 100 40 60 20 120 Airflow rate (m3 /min) External static pressure (Pa) 0 140 120 100 80 60 40 20 160 180 20 High Middle Low Limit High Middle Low Limit High Middle Low Limit High Middle Low Limit High Middle Low Limit Limit Limit Limit Limit Limit Plasma Quad Connect Plasma Quad Connect Plasma Quad Connect Plasma Quad Connect Plasma Quad Connect 0000006347.BOOK 28 ページ 2021年7月13日 火曜日 午前9時52分
  • 30.
    MEES21K075 PEFY-M-VMA(L)-A 29 6. FAN CHARACTERISTICSCURVES Ceiling concealed (Medium static pressure type) PEFY-M100VMA(L)-A External static pressure : 50Pa Power source : 220-240V PEFY-M100VMA(L)-A External static pressure : 40Pa Power source : 220-240V PEFY-M100VMA(L)-A External static pressure : 100Pa Power source : 220-240V PEFY-M100VMA(L)-A External static pressure : 70Pa Power source : 220-240V PEFY-M100VMA(L)-A External static pressure : 150Pa Power source : 220-240V Airflow rate (m3 /min) External static pressure (Pa) 19 25 27 29 31 33 35 37 39 21 23 19 25 27 29 31 33 35 37 39 21 23 19 25 27 29 31 33 35 37 39 21 23 19 25 27 29 31 33 35 37 39 21 23 19 25 27 29 31 33 35 37 39 21 23 Airflow rate (m3 /min) External static pressure (Pa) 0 40 20 60 80 0 40 20 60 80 Airflow rate (m3 /min) External static pressure (Pa) 0 60 40 80 100 Airflow rate (m3 /min) External static pressure (Pa) 0 80 100 40 60 20 140 120 Airflow rate (m3 /min) External static pressure (Pa) 0 140 120 100 80 60 40 20 160 180 20 High Middle Low Limit High Middle Low Limit High Middle Low Limit High Middle Low Limit High Middle Low Limit Limit Limit Limit Limit Limit Plasma Quad Connect Plasma Quad Connect Plasma Quad Connect Plasma Quad Connect Plasma Quad Connect 0000006347.BOOK 29 ページ 2021年7月13日 火曜日 午前9時52分
  • 31.
    MEES21K075 PEFY-M-VMA(L)-A 30 6. FAN CHARACTERISTICSCURVES Ceiling concealed (Medium static pressure type) PEFY-M125VMA(L)-A External static pressure : 50Pa Power source : 220-240V PEFY-M125VMA(L)-A External static pressure : 40Pa Power source : 220-240V PEFY-M125VMA(L)-A External static pressure : 100Pa Power source : 220-240V PEFY-M125VMA(L)-A External static pressure : 70Pa Power source : 220-240V PEFY-M125VMA(L)-A External static pressure : 150Pa Power source : 220-240V Airflow rate (m3 /min) External static pressure (Pa) 0 20 40 80 60 22 28 30 32 34 36 38 40 24 26 22 28 30 32 34 36 38 40 24 26 22 28 30 32 34 36 38 40 24 26 22 28 30 32 34 36 38 40 24 26 22 28 30 32 34 36 38 40 24 26 Airflow rate (m3 /min) External static pressure (Pa) 0 40 20 60 100 80 Airflow rate (m3 /min) External static pressure (Pa) 0 60 40 80 120 100 Airflow rate (m3 /min) External static pressure (Pa) 0 80 100 40 60 20 140 120 Airflow rate (m3 /min) External static pressure (Pa) 0 140 120 100 80 60 40 20 160 200 180 20 High Middle Low Limit High Middle Low Limit High Middle Low Limit High Middle Low Limit High Middle Low Limit Limit Limit Limit Limit Limit Plasma Quad Connect Plasma Quad Connect Plasma Quad Connect Plasma Quad Connect Plasma Quad Connect 0000006347.BOOK 30 ページ 2021年7月13日 火曜日 午前9時52分
  • 32.
    MEES21K075 PEFY-M-VMA(L)-A 31 6. FAN CHARACTERISTICSCURVES Ceiling concealed (Medium static pressure type) PEFY-M140VMA(L)-A External static pressure : 50Pa Power source : 220-240V PEFY-M140VMA(L)-A External static pressure : 40Pa Power source : 220-240V PEFY-M140VMA(L)-A External static pressure : 100Pa Power source : 220-240V PEFY-M140VMA(L)-A External static pressure : 70Pa Power source : 220-240V PEFY-M140VMA(L)-A External static pressure : 150Pa Power source : 220-240V Airflow rate (m3 /min) External static pressure (Pa) 0 20 40 80 60 28 30 32 34 36 38 40 42 44 46 48 24 26 28 30 32 34 36 38 40 42 44 46 48 24 26 28 30 32 34 36 38 40 42 44 46 48 24 26 28 30 32 34 36 38 40 42 44 46 48 24 26 28 30 32 34 36 38 40 42 44 46 48 24 26 Airflow rate (m3 /min) External static pressure (Pa) 0 40 20 60 100 80 Airflow rate (m3 /min) External static pressure (Pa) 0 60 40 80 120 100 Airflow rate (m3 /min) External static pressure (Pa) 0 80 100 40 60 20 140 120 Airflow rate (m3 /min) External static pressure (Pa) 0 140 120 100 80 60 40 20 160 200 180 20 High Middle Low Limit High Middle Low Limit High Middle Low Limit High Middle Low Limit High Middle Low Limit Limit Limit Limit Limit Limit Plasma Quad Connect Plasma Quad Connect Plasma Quad Connect Plasma Quad Connect Plasma Quad Connect 0000006347.BOOK 31 ページ 2021年7月13日 火曜日 午前9時52分
  • 33.
    MEES21K075 PEFY-M-VMA(L)-A 32 7. CAPACITY TABLESCeiling concealed (Medium static pressure type) 7. CAPACITY TABLES 7-1. Correction by fan speed Cooling Heating Ratio of air volume Ratio of cooling capacity Ratio of heating capacity Ratio of air volume 0.80 0.85 0.90 0.95 1.00 1.05 0.75 0.80 0.85 0.90 0.95 1.00 1.05 1.10 0.70 0.80 0.85 0.90 0.95 1.00 1.05 0.75 0.80 0.85 0.90 0.95 1.00 1.05 1.10 0.70 0000006347.BOOK 32 ページ 2021年7月13日 火曜日 午前9時52分
  • 34.
    MEES21K075 PEFY-M-VMA(L)-A 33 8. ELECTRICAL CHARACTERISTICSCeiling concealed (Medium static pressure type) 8. ELECTRICAL CHARACTERISTICS Symbols: MCA (Max.Circuit Amps =1.25xFLA), FLA (Full Load Amps) IFM (Indoor Fan Motor), Output (Fan motor rated output) PEFY-M-VMA(L)-A Power supply IFM Volts/Hz Range +-10% MCA (A) Output (kW) FLA (A) PEFY-M20VMA(L)-A 220-240V/50Hz 220-240V/60Hz Max.: 264V Min.: 198V 0.93 0.085 0.74 PEFY-M25VMA(L)-A 0.93 0.085 0.74 PEFY-M32VMA(L)-A 1.19 0.085 0.95 PEFY-M40VMA(L)-A 1.45 0.121 1.16 PEFY-M50VMA(L)-A 1.55 0.121 1.24 PEFY-M63VMA(L)-A 1.69 0.121 1.35 PEFY-M71VMA(L)-A 2.31 0.121 1.85 PEFY-M80VMA(L)-A 2.38 0.121 1.90 PEFY-M100VMA(L)-A 2.81 0.300 2.25 PEFY-M125VMA(L)-A 2.93 0.300 2.34 PEFY-M140VMA(L)-A 3.29 0.300 2.63 0000006347.BOOK 33 ページ 2021年7月13日 火曜日 午前9時52分
  • 35.
    MEES21K075 PEFY-M-VMA(L)-A 34 9. OPTIONAL PARTSCeiling concealed (Medium static pressure type) 9. OPTIONAL PARTS 9-1. Optional parts line up for the Indoor unit 9-2. Filter box PEFY-M20, 25, 32VMA(L)-A PEFY-M40, 50, 63VMA(L)-A PEFY-M71, 80VMA(L)-A PEFY-M100, 125VMA(L)-A PEFY-M140VMA(L)-A Filter box PAC-KE91TB-E PAC-KE92TB-E PAC-KE93TB-E PAC-KE94TB-E PAC-KE95TB-E PEFY-M-VMA(L)-A Plasma Quad Connect MAC-100FT-E MAC-100FT-E MAC-100FT-E MAC-100FT-E MAC-100FT-E PQ attachment (Rear inlet) PAC-HA31PAR PAC-HA31PAR PAC-HA31PAR PAC-HA31PAR PAC-HA31PAR PQ attachment (Bottom inlet) PAC-HA31PAU PAC-HA31PAU PAC-HA31PAU PAC-HA31PAU PAC-HA31PAU PQ box PAC-KE91PTB-E PAC-KE92PTB-E PAC-KE93PTB-E PAC-KE94PTB-E PAC-KE95PTB-E Filter box PAC-KE·TB-E PAC-KE-TB-E Item Screw Filter box Installation manual Quantity 30 1 FLANGE 1 1 Shape Detailed installation information should be referred to its Installation Manual. 1 2 3 4 0000006347.BOOK 34 ページ 2021年7月13日 火曜日 午前9時52分
  • 36.
    MEES21K075 PEFY-M-VMA(L)-A 35 9. OPTIONAL PARTSCeiling concealed (Medium static pressure type) 9-3. Plasma Quad Connect Static pressure loss is referred to 6 “FAN CHARACTERISTICS CURVES”. Plasma Quad Connect (MAC-100FT-E) should be used together with PQ box or PQ attachment (PAC-HA31PAR or PAC-HA31PAU). *Attaching the Plasma Quad Connect increases the pressure loss. Adjust the external static pressure setting as necessary. For the adjustment procedure, see the Installation Manual for the indoor unit. Plasma Quad Connect (MAC-100FT-E) Item Plasma Quad Connect (with connecting cable) Installation plate Fixing screw for Plasma Quad Connect and Installation plate 4 × 25 mm Quantity 1 1 5 Shape Item Spacer Note: The spacer is used as packaging material. Mounting cord clamp Cable tie Quantity 1 1 1 Shape Item Screw for Mounting cord clamp 4 × 16 (Use when joining room air conditioner parts) Quantity 1 Shape Detailed installation information should be referred to its Installation Manual. PQ attachment (Rear inlet) (PAC-HA31PAR) Item PLATE 1 Quantity 1 PLATE 2 – PLATE 3 1 PLATE 4 1 Screw (4 × 10) 3 Screw (5 × 10) 2 RUBBER PLATE 2 RUBBER PLATE 2 Shape Detailed installation information should be referred to its Installation Manual. PQ box (PAC-KE91, 92, 93, 94, 95PTB-E) Item Quantity Screw (4 × 10) 22 (PAC-KE91PTB-E) 26 (PAC-KE92, 93PTB-E) 32 (PAC-KE94, 95PTB-E) 2 WIRING COVER 1 2 SUCTION FLANGE 1 RUBBER PLATE CABLE STRAP Shape Detailed installation information should be referred to its Installation Manual. PQ attachment (Bottom inlet) (PAC-HA31PAU) Item PLATE 1 Quantity 1 PLATE 2 1 PLATE 3 1 PLATE 4 1 Screw (4 × 10) 9 CABLE STRAP 1 WIRE SADDLE 1 Shape Detailed installation information should be referred to its Installation Manual. 0000006347.BOOK 35 ページ 2021年7月13日 火曜日 午前9時52分
  • 37.
    MEES21K075 PEFY-M-VMA(L)-A 36 9. OPTIONAL PARTSCeiling concealed (Medium static pressure type) Air outlet Air inlet 100 A 41 509 267 250 732 69 801 B Plasma quad connect Control box Cover WIDE A B 700 850 900 1050 1100 1250 1400 1550 1600 1750 Top Top Bottom view Piping side view Inlet air side view Front Back PEFY-P20, 25, 32, 40, 50, 63, 71, 80, 100, 125, 140VMA(L)-A with PQ attachment (Rear inlet) and Plasma Quad Connect Unit: mm Model WIDE A B Model WIDE A B PEFY-P20,25,32VMA(L)-A 700 850 PEFY-P100,125VMA(L)-A 1400 1550 PEFY-P40,50VMA(L)-A 900 1050 PEFY-P140VMA(L)-A 1600 1750 PEFY-P63,71,80VMA(L)-A 1100 1250 The drawing above is a sample image of the optional parts being installed on a unit. 0000006347.BOOK 36 ページ 2021年7月13日 火曜日 午前9時52分
  • 38.
    MEES21K075 PEFY-M-VMA(L)-A 37 9. OPTIONAL PARTSCeiling concealed (Medium static pressure type) 700 700 Min.300mm Min.10mm 450 450 450 50~150 D 700 Min.300mm C 50 50 F 777 777 50 E 50 475 C 450 Min.20mm Min.300mm C 450 475 450 Min.300mm Min.10mm Access door 1 (450×450) Access door 3 Air inlet Access door 1 (450×450) Ceiling beam Access door 2(450×450) Control box Air outlet Air outlet Air inlet Maintenance access space Control box Access door 3 Control box 100~200 Bottom of indoor unit (Viewed from the direction of the arrow B) B Ceiling beam Ceiling Access door 2 (450×450) Ceiling A Bottom of indoor unit 100~200 Control box Fig.3 Fig.4 Fig.5 Fig.2 Fig.1 Maintenance access space (Viewed from the direction of the arrow B) Bottom of indoor unit Access door 4 Maintenance access space (Viewed from the direction of the arrow A) Plasma quad connect Plasma quad connect Plasma quad connect Control box Plasma quad connect Plasma quad connect Note.(3) Note.(3) WIDE C D E F 700 50~150 800 1300 900 150~250 1000 1500 1100 250~350 1200 1700 1400 400~500 1500 2000 1600 500~600 1700 2200 [Maintenance access space] Secure enough access space to allow for the maintenance, inspection, and replacement of the motor, fan, drain pump, heat exchanger, and control box in one of the following ways. Select an installation site for the indoor unit so that its maintenance access space will not be obstructed by beams or other objects. (1) When a space of 300mm or more is available below the unit between the unit and the ceiling. (Fig.1) • Create access door 1 and 2 (450x450mm each) as shown in Fig.2. (Access door 2 is not required if enough space is available below the unit for a maintenance worker to work in.) (2) When a space of less than 300mm is available below the unit between the unit and the ceiling. (At least 20mm of space should be left below the unit as shown in Fig.3.) • Create access door 1 diagonally below the control box and access door 3 below the unit as shown in Fig.4. or • Create access door 4 below the control box and the unit as shown in Fig.5. (3) For maintenance if there is more than 170mm from the top surfce, the cover can be pulled out without removing the PQ attachment. (Fig.1, Fig.3) PEFY-P20, 25, 32, 40, 50, 63, 71, 80, 100, 125, 140VMA(L)-A with PQ attachment (Rear inlet) and Plasma Quad Connect Unit: mm Model WIDE C D E F Model WIDE C D E F PEFY-P20,25,32VMA(L)-A 700 50~150 800 1300 PEFY-P100,125VMA(L)-A 1400 400~500 1500 2000 PEFY-P40,50VMA(L)-A 900 150~250 1000 1500 PEFY-P140VMA(L)-A 1600 500~600 1700 2200 PEFY-P63,71,80VMA(L)-A 1100 250~350 1200 1700 The drawing above is a sample image of the optional parts being installed on a unit. 0000006347.BOOK 37 ページ 2021年7月13日 火曜日 午前9時52分
  • 39.
    MEES21K075 PEFY-M-VMA(L)-A 38 9. OPTIONAL PARTSCeiling concealed (Medium static pressure type) Plasma quad connect Control box Top Top Bottom view Piping side view Back view Front Back Inlet air side view Air outlet Air inlet 100 732 A 748 B 250 320 168 561 47 506 PEFY-P20, 25, 32, 40, 50, 63, 71, 80, 100, 125, 140VMA(L)-A with PQ attachment (Bottom inlet) and Plasma Quad Connect Unit: mm WIDE A B 700 850 900 1050 1100 1250 1400 1550 1600 1750 Model WIDE A B Model WIDE A B PEFY-P20,25,32VMA(L)-A 700 850 PEFY-P100,125VMA(L)-A 1400 1550 PEFY-P40,50VMA(L)-A 900 1050 PEFY-P140VMA(L)-A 1600 1750 PEFY-P63,71,80VMA(L)-A 1100 1250 The drawing above is a sample image of the optional parts being installed on a unit. 0000006347.BOOK 38 ページ 2021年7月13日 火曜日 午前9時52分
  • 40.
    MEES21K075 PEFY-M-VMA(L)-A 39 9. OPTIONAL PARTSCeiling concealed (Medium static pressure type) 700 700 Min.300mm Min.10mm 450 450 450 50~150 D 700 Min.300mm C 50 50 F 777 777 50 E 50 475 C 450 Min.20mm Min.300mm C 450 475 450 Min.300mm Min.10mm Access door 1 (450×450) Access door 1 (450×450) Maintenance access space Control box Access door 3 Control box 100~200 Bottom of indoor unit (Viewed from the direction of the arrow B) B Access door 2 (450×450) A Bottom of indoor unit 100~200 Control box Fig.3 Fig.4 Fig.5 Fig.2 Fig.1 Maintenance access space (Viewed from the direction of the arrow B) Bottom of indoor unit Access door 4 Maintenance access space (Viewed from the direction of the arrow A) Plasma quad connect Plasma quad connect Plasma quad connect Ceiling beam Air outlet Air inlet Control box Plasma quad connect Access door 3 Ceiling Ceiling beam Air outlet Air inlet Control box Plasma quad connect Access door 2 (450x450) Ceiling WIDE C D E F 700 50~150 800 1300 900 150~250 1000 1500 1100 250~350 1200 1700 1400 400~500 1500 2000 1600 500~600 1700 2200 [Maintenance access space] Secure enough access space to allow for the maintenance, inspection, and replacement of the motor, fan, drain pump, heat exchanger, and control box in one of the following ways. Select an installation site for the indoor unit so that its maintenance access space will not be obstructed by beams or other objects. (1) When a space of 300mm or more is available below the unit between the unit and the ceiling. (Fig.1) • Create access door 1 and 2 (450x450mm each) as shown in Fig.2. (Access door 2 is not required if enough space is available below the unit for a maintenance worker to work in.) (2) When a space of less than 300mm is available below the unit between the unit and the ceiling. (At least 20mm of space should be left below the unit as shown in Fig.3.) • Create access door 1 diagonally below the control box and access door 3 below the unit as shown in Fig.4. or • Create access door 4 below the control box and the unit as shown in Fig.5. PEFY-P20, 25, 32, 40, 50, 63, 71, 80, 100, 125, 140VMA(L)-A with PQ attachment (Bottom inlet) and Plasma Quad Connect Unit: mm Model WIDE C D E F Model WIDE C D E F PEFY-P20,25,32VMA(L)-A 700 50~150 800 1300 PEFY-P100,125VMA(L)-A 1400 400~500 1500 2000 PEFY-P40,50VMA(L)-A 900 150~250 1000 1500 PEFY-P140VMA(L)-A 1600 500~600 1700 2200 PEFY-P63,71,80VMA(L)-A 1100 250~350 1200 1700 The drawing above is a sample image of the optional parts being installed on a unit. 0000006347.BOOK 39 ページ 2021年7月13日 火曜日 午前9時52分
  • 41.
    MEES21K075 PEFY-M-VMA(L)-A 40 9. OPTIONAL PARTSCeiling concealed (Medium static pressure type) Control box Air outlet Air inlet Plasma quad connect 2×D-ø2.9 2×1-ø2.9 Air Filter Air Filter PQ Box WIDE A B C D E 700 850 658 7 600 900 1050 858 9 800 1100 1250 1058 11 1000 1400 1550 1358 14 1300 1600 1750 1558 16 1500 Top Top Bottom view Piping side view Inlet air side view Front Back 250 C(Duct) 21 100 A B 32 700 29 100×(D-1)=E 10 100 911 153 26 20 208(Duct) 104 10 PEFY-P20, 25, 32, 40, 50, 63, 71, 80, 100, 125, 140VMA(L)-A with PQ box and Plasma Quad Connect Unit: mm Model WIDE A B C D E Model WIDE A B C D E PEFY-P20,25,32VMA(L)-A 700 850 658 7 600 PEFY-P100,125VMA(L)-A 1400 1550 1358 14 1300 PEFY-P40,50VMA(L)-A 900 1050 858 9 800 PEFY-P140VMA(L)-A 1600 1750 1558 16 1500 PEFY-P63,71,80VMA(L)-A 1100 1250 1058 11 1000 The drawing above is a sample image of the optional parts being installed on a unit. 0000006347.BOOK 40 ページ 2021年7月13日 火曜日 午前9時52分
  • 42.
    MEES21K075 PEFY-M-VMA(L)-A 41 9. OPTIONAL PARTSCeiling concealed (Medium static pressure type) K Min.480mm 853 50 50 628 853 Min.480mm 853 450 628 Min.10mm 450 Min.10mm 250~300 450 G 50~150 250~300 Min.480mm 450 450 450 50 50 960 960 H J F F F Min.300mm Min.20mm Maintenance access space Maintenance access space Maintenance access space Access door 3 Access door 4 Access door 2 (450×450) Ceiling Ceiling A B Fig.3 Fig.4 Fig.2 Fig.1 Fig.5 (Viewed from the direction of the arrow A) * In case of side maintenance for air filter. * In case of side maintenance for air filter. More than 200 More than 200 (Viewed from the direction of the arrow B) (Viewed from the direction of the arrow B) Intake air Intake air Supply air Supply air Access door 2(450×450) Access door 3 Ceiling beam Ceiling beam Bottom of indoor unit Bottom of indoor unit Bottom of indoor unit Access door 1 (450×450) Access door 1 (450×450) Control box Control box Control box Control box Control box PQ Box PQ Box WIDE F G H J K 700 50~150 800 1300 1450 900 150~250 1000 1500 1850 1100 250~350 1200 1700 1400 400~500 1500 2000 2150 1600 500~600 1700 2200 2550 [Maintenance access space] Secure enough access space to allow for the maintenance, inspection, and replacement of the motor, fan, drain pump, heat exchanger, and control box in one of the following ways. Select an installation site for the indoor unit so that its maintenance access space will not be obstructed by beams or other objects. (1) When a space of 300mm or more is available below the unit between the unit and the ceiling. (Fig.1) • Create access door 1 and 2 (450x450mm each) as shown in Fig.2. (Access door 2 is not required if enough space is available below the unit for a maintenance worker to work in.) (2) When a space of less than 300mm is available below the unit between the unit and the ceiling. (At least 20mm of space should be left below the unit as shown in Fig.3.) • Create access door 1 diagonally below the control box and access door 3 below the unit as shown in Fig.4. or • Create access door 4 below the control box and the unit as shown in Fig.5. * Dimension 'K' is in case of side maintenance for air filter. PEFY-P20, 25, 32, 40, 50, 63, 71, 80, 100, 125, 140VMA(L)-A with PQ box and Plasma Quad Connect Unit: mm Model WIDE F G H J K Model WIDE F G H J K PEFY-P20,25,32VMA(L)-A 700 50~150 800 1300 1450 PEFY-P100,125VMA(L)-A 1400 400~500 1500 2000 2150 PEFY-P40,50VMA(L)-A 900 150~250 1000 1500 1850 PEFY-P140VMA(L)-A 1600 500~600 1700 2200 2550 PEFY-P63,71,80VMA(L)-A 1100 250~350 1200 1700 - The drawing above is a sample image of the optional parts being installed on a unit. 0000006347.BOOK 41 ページ 2021年7月13日 火曜日 午前9時52分
  • 43.
    42 MEES21K075 Ceiling concealed (Mediumstatic pressure type) 0000006347.BOOK 42 ページ 2021年7月13日 火曜日 午前9時52分
  • 44.
    MEES21K075 New publication effectiveJuly 2021 Specifications subject to change without notice Warning Do not use refrigerant other than the type indicated in the manuals provided with the unit and on the nameplate. - Doing so may cause the unit or pipes to burst, or result in explosion or fire during use, repair, or at the time of disposal of the unit. - It may also be in violation of applicable laws. - MITSUBISHI ELECTRIC CORPORATION cannot be held responsible for malfunctions or accidents resulting from the use of the wrong type of refrigerant. Our air conditioning equipment and heat pumps contain a fluorinated greenhouse gas, R32 or R410A. ■ ■