1
FABRICATION OF MODULAR PALLET RACK
FOR STORAGE OF COMPLETELY BUILT-UP MOTORCYCLES.
AUTHORS
ALUKO ADEDEJI
AYANKOSO SAMUEL
SUPERVISOR
ENGR OLUSEGUN ADEKOYA
(QUALITY, R&D MANAGER BOULOS ENTERPRISE LIMITED)
February, 2016.
2
ABSTRACT
With the aim of efficiently utilizing storage floor space, the need to design and implement the use of
pallet racking structures constructed using steel material (Hot Rolled High Tensile Steel) which are
commonly used to store large variety of materials came into play.
The design of such structure is critically influenced by the total number of palletized inventory to be
stored, rotation-of-stock (F.I.F.O.) requirements, production policy, methods by which product
selection and replenishment will occur, maximum expected weight and other parameters. This
Report attempts to describe the fabrication process of the designed motorcycle pallet rack.
3
TABLE OF CONTENT
Pages
1.0 INTRODUCTION………………………………………………………………..4-6
2.0 PROJECT MANAGEMENT…………………………………………………….7-11
2.1 Initial Implementation Phase……………………………………………………….7
2.2 Project Implementation 2nd
Phase…………………………………………………..8-11
3.0 PROJECT WORKFLOW………………………………………………………...12-20
3.1 Project Preparation…………………………………………………………………14
3.2 Project Proposal. …………………………………………………………………..14-15
3.3 Material Selection and Procurement…………………………………………..……15
3.4 Tools and Equipment……………………………………………….………………16
3.5 Work Place Preparation……………………………………………………………16
3.6 Project Work Plan……………………………………………………….…………17
3.7 Material Preparation…………………………………………………………….…17
3.8 Work Breakdown Structure………………………………………………………..17-20
4.0 PROJECT SAFETY CONSIDERATIONS……………………..………………21
4
1.0 INTRODUCTION
Boulos Enterprises Limited (BEL) is a leading distribution and trading company for commercial
motorcycle, power bikes, tricycle and outboard motors in Nigeria. This position has been earned and
achieved by offering the public high quality products carefully made to suit the Nigerian climatic and
road conditions through proper coordination of activities carried out by all departments in Boulos’s
manufacturing and assembly plant.
There are majorly two categories of finished product from the Boulos’s manufacturing and assembly
plant;
 Motorcycles
 Tricycles
With each category having their respective product realization path, that for motorcycle is given
below in fig 1.0.
Like any typical manufacturing plant, three types of inventories are maintained in Boulos assembly
plant and they are;
a. Raw Material: This includes all unit components needed for complete assembling of
respective motorcycle product.
b. Work in Process: This class of inventory includes all component already supplied to the
assembly line and unfinished motorcycle still on the production line.
c. Finished Goods Stock: This includes all varieties of completely assembled motorcycle.
Boulos Manufacturing and Assembly Plant has certain constrains among which includes;
1. Limited Storage Space.
2. Increasing Product Variety.
3. Increasing Demand.
4. Increasing Cost of Real Estate.
That been said, keeping high quantity of motorcycle (different varieties) as finished goods inventory
is not economical (high investment into real estate for storage space) and cannot be achieved with the
present limited storage space so therefore, a balance is required to be reached between the different
manufacturing policies.
5
Fig 1.0 Boulos QRD Department
6
7
These policies include;
 Make to Stock.
 Make to Order.
o MTS (Make to Stock) literally means to manufacture products for stock based on demand
forecasts, which can be regarded as push-type production. MTS has been required to prevent
opportunity loss due to stock out and minimize excess inventory using accurate forecasts (1).
o MTO (Make to Order) is a manufacturing process in which manufacturing starts only after a
customer's order is received. Forms of MTO vary, for example, an assembly process starts when
demand actually occurs or manufacturing starts with development planning (1).
In Boulos’s manufacturing and assembly plant, but policies are used since proper balance
between both will ensure the best efficiency of the assemble line.
Given that make to stock policy requires storage space, investment already has been made in the
proper storage facilities for raw materials inventory (unit components and part sub assembly
storage). This project therefore addresses the investment in storage facilities for finished goods
inventory as this report highlights the implementation stage of the project (fabrication of pallet
racks for motorcycle CBU storage).
8
2.0 PROJECT MANAGEMENT
2.1.Initial Implementation Phase
The first rack was fabricated without major management tools in place. Material for each unit
parts were prepared as at when needed and not beforehand therefore resulting in a lot of
dimensional inaccuracy while cutting. Although the quality of weld and alignment were good,
lack of proper management lead to major error induced by nature of the material itself and also
during preparation.
The resulting motorcycle rack was observed to be a little bit slanted as shown in fig *** and
therefore was below the intended quality standard.
In order complete the production of the rack, other actions had to be carried out to help correct
the error. As a member of the fabrication team (where I acquired major experience needed to
complete those I have acquired unset either through action or observation) I was able to articulate
all activities carried out in their sequence of relevance and this helped me to put into perspective
the planning of the next phase of the project.
Fig 2.0
9
2.2. Project Implementation (2nd
Phase)
In the second phase of fabrication, project management tool and techniques were invoked via
proper planning, directing, supervision and control of all activities taking place and resources
required for the project execution. In order to avoid the errors made during the fabrication of the
Pilot model (both measurement and material induced), concept of modularization was
introduced.
Modularization is a design approach that subdivides a system into smaller parts called modules
or skids that can be independently created and then used in different systems. This was achieved
by breaking up major parts of the design into modules (Modules A, Module B and Add-ons) and
designing of welding fixture for the fabrication of each module as shown in fig ***** and fig
****. The introduction of modularization and welding fixture helped in achieving the following;
 Helped to correct the inherent error of the work material
 Ensure dimensional accuracy
 reduce production time
 Argumentation
With this concept in place, the resulting outputs were consistent, dimensionally accurate and
of a better quality than that fabricated in the first phase as shown in fig 2.3.
10
Fig 2.1
11
Fig 2.2
12
Fig 2.3
13
3.0 PROJECT WORKFLOW
As projects needs to be managed in order to achieve execution which meets the project expectations
and client’s (CKD Department) requirement, this project was designed to follow a structured flow of
activities. As given below in fig 3.0, the project workflow includes the following;
A. Project Preparation
B. Project Proposal.
C. Project Approval
D. Material Procurement
E. Work Place Preparation
F. Project Work Plan
G. Material Preparation
H. Commencement of Design Fabrication.
14
Fig 3.0
15
3.1. Project Preparation:
At the stage, the proper understanding of the customer’s need was established before the
initiation of the designing stage. Among the things considered includes;
 Design Methodology
 Structural Analysis
 Bill Of Material
 Pallet Rack Operational Requirements
 Pallet Rack Safety Considerations
 Storage Capacity And Space Calculations
 Modular Pallet Racking System Layout
 Design Benefits And Value
3.2 Project Proposal:
At this stage, all enquiries gotten from the document generated from the project preparation in
addition with information such as;
 Storage Capacity And Space Calculations
 Modular Pallet Racking System Layout
 Design Benefits And Value
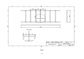
 Detailed Engineering drawings of the designs for the purpose of fabrication (fig 3.1)
formed for the proposal for the implementation of the project.
16
Fig 3.1
3.3. Material Selection and Procurement:
The selection was carried out after different materials have been tested and simulated with the
maximum load possible using a CAD software (Autodesk Inventor). This helped in analyzing
the stress signatures of each materials and thus picking the one which meets the load
requirement plus economical advantage.
After the approval of the pallet rack project, procurement of the required materials was
carried out after which, implementation of the project work plan commenced.
 Since the initial purpose of the project was to design industrial grade pallet racks using
locally available material, the materials selected include;
o Angle Iron 70X70x5
o Angle Iron 50x50x5
Procurement of the required quantity of steel materials were there for carried out locally as
local steel material were used.
17
3.4. Tools and Equipment:
During the implementation of the project, the following tools and equipment were used;
1. Scriber
2. Tri-square
3. Meter Rule
4. Hand Cutting/Grinding Machine
5. Cut-off/Fixed Cutting Machine
6. Industrial Grade Welding Machine
3.5. Workplace Preparation:
 This was carried out by deliberately allocating resources (workplace, machinery and man
power) for the commencement of the clearing process.
 The allocated section was cleared and arranged in other to accommodate the size of the
project.
 One industrial arc-welding machine was allocated.
 Between 2-5 manpower were used for the clearing of the project workplace.
18
3.6. The Work Plan:
Given below in Fig *** is the fabrication work plan for motorcycle pallet rack.
Fig 3.2
3.7. Material Preparation:
 Engineering Dimensioning and Marking out operation on the respective pallet rack
component material
 Cutting to size of already marked out pallet rack component material
 Arrangement of prepared materials on worksite
3.8. Work Breakdown Structure for the Fabrication Processes
A work breakdown structure (WBS) is a deliverable-oriented decomposition of a project into
smaller components thereby organizing the team's work into manageable sections.
As the stated definition implies, the WBS for the pallet rack project is given bellow;
19
Work Breakdown Structure
A. Fixture Fabrication
A1. Design of welding fixture X and Y
A2. Preparation of material for welding fixture X
A3. Fabrication of welding fixture X for module A&B
A4. Preparation of material for welding Fixture Y
A5. Fabrication of welding fixture Y for module C, D, E, F
B. Module A&B Fabrication
B1. Arrangement of unit component for module A on the welding fixture X
B2. Welding of the joints of the arranged module
B3. Turning over of the welded module to complete the welding operation
B4. Arrangement of unit component for module B on the welding fixture X
B5. Welding of the joints of the arranged module
B6. Turning over of the welded module to complete the welding operation
C. Module C, D, E, F Fabrication
C1. Arrangement of unit component for module C and welding of joints
C2. Welding of the joints of the arranged module
C3.Turning over of the welded module to complete the welding operation
C4. Arrangement of unit component for module F and welding of joints
C5. Welding of the joints of the arranged module
C6.Turning over of the welded module to complete the welding operation
20
C7. Arrangement of unit component for module D and welding of joints
C8. Welding of the joints of the arranged module
C9.Turning over of the welded module to complete the welding operation
C10.Arrangement of unit component for module E and welding of joints
C11.Welding of the joints of the arranged module
C12.Turning over of the welded module to complete the welding operation
D. Assemble of All Modules
D1. Transfer of the welded modules to the assembly site
D2. Support of both Modules A&B with the a standing medium to ensure proper vertical
alignment
D3 Placement, alignment of module C in its designated position and welding of contact
points with modules A&B
D4 Placement, alignment of module F in its designated position and welding of contact
points with modules A&B
D5.Placement, alignment of module D in its designated position and welding of contact
points with modules A&B
D6. Placement, alignment of module E in its designated position and welding of contact
points with modules A&B
E. Addition of Add-On Components
E1. Positioning, alignment and welding of add-on components
21
F. Finishing Touches
F1. Grinding of rough edges
F2. Painting of the rack
Given below in fig ** is the Gantt chart for the fabrication process of the motorcycle pallet
rack.
Fig 3.3
Processes WBDS Modules
Type ofJig
1 12 13 14 15 16 17 18
A1
A2
A3
A4
A5
B1 A X
B2 A X
B3 A X
B4 B X
B5 B X
B6 B X
C1 C Y
C2 C Y
C3 C Y
C4 D Y
C5 D Y
C6 D Y
C7 E Y
C8 E Y
C9 E Y
C10 F Y
C11 F Y
C12 F Y
D1
D2
D3
D4
D5
D6
E E1
F1
F2
DocumentNumber
Approval Date
3/12/2015 4/12/2015 4/12/2015
Document
Description
GANGCHARTFORFABRICATION
PROCESSOFMOTORCYCLEPALLETRACK
Author Issued by Approvedby
AlukoAdedeji OlusegunAdekoya OlusegunAdekoya
AuthorDate Issuance Date
BEL/16/005/FAB-GC/310/AA/000
GANTT CHART FOR FABRICATION Process OF MOTORCYCLE PALLET RACK
A
B
C
D
F
2 3 4 8 9 10 11
Days
22
4.0 PROJECT SAFETY CONSIDERATIONS
In any operation, safety of the workers and other resources is of paramount interest and
consideration. Therefore, apart from the fact that safety in terms of allowance for excess loading
conditions has been built into the design, other safety precautions and ethics were used and
encouraged during the fabrication process.
Some of the safety considerations are;
1. Use of PPE such as
a. Safety Google
b. Helmet and Shield
c. Protective clothing
2. Proper ventilation of welding environment
3. Use of appropriate equipment by authorized personals

Motorcycle Pallet Rack Project Report

  • 1.
    1 FABRICATION OF MODULARPALLET RACK FOR STORAGE OF COMPLETELY BUILT-UP MOTORCYCLES. AUTHORS ALUKO ADEDEJI AYANKOSO SAMUEL SUPERVISOR ENGR OLUSEGUN ADEKOYA (QUALITY, R&D MANAGER BOULOS ENTERPRISE LIMITED) February, 2016.
  • 2.
    2 ABSTRACT With the aimof efficiently utilizing storage floor space, the need to design and implement the use of pallet racking structures constructed using steel material (Hot Rolled High Tensile Steel) which are commonly used to store large variety of materials came into play. The design of such structure is critically influenced by the total number of palletized inventory to be stored, rotation-of-stock (F.I.F.O.) requirements, production policy, methods by which product selection and replenishment will occur, maximum expected weight and other parameters. This Report attempts to describe the fabrication process of the designed motorcycle pallet rack.
  • 3.
    3 TABLE OF CONTENT Pages 1.0INTRODUCTION………………………………………………………………..4-6 2.0 PROJECT MANAGEMENT…………………………………………………….7-11 2.1 Initial Implementation Phase……………………………………………………….7 2.2 Project Implementation 2nd Phase…………………………………………………..8-11 3.0 PROJECT WORKFLOW………………………………………………………...12-20 3.1 Project Preparation…………………………………………………………………14 3.2 Project Proposal. …………………………………………………………………..14-15 3.3 Material Selection and Procurement…………………………………………..……15 3.4 Tools and Equipment……………………………………………….………………16 3.5 Work Place Preparation……………………………………………………………16 3.6 Project Work Plan……………………………………………………….…………17 3.7 Material Preparation…………………………………………………………….…17 3.8 Work Breakdown Structure………………………………………………………..17-20 4.0 PROJECT SAFETY CONSIDERATIONS……………………..………………21
  • 4.
    4 1.0 INTRODUCTION Boulos EnterprisesLimited (BEL) is a leading distribution and trading company for commercial motorcycle, power bikes, tricycle and outboard motors in Nigeria. This position has been earned and achieved by offering the public high quality products carefully made to suit the Nigerian climatic and road conditions through proper coordination of activities carried out by all departments in Boulos’s manufacturing and assembly plant. There are majorly two categories of finished product from the Boulos’s manufacturing and assembly plant;  Motorcycles  Tricycles With each category having their respective product realization path, that for motorcycle is given below in fig 1.0. Like any typical manufacturing plant, three types of inventories are maintained in Boulos assembly plant and they are; a. Raw Material: This includes all unit components needed for complete assembling of respective motorcycle product. b. Work in Process: This class of inventory includes all component already supplied to the assembly line and unfinished motorcycle still on the production line. c. Finished Goods Stock: This includes all varieties of completely assembled motorcycle. Boulos Manufacturing and Assembly Plant has certain constrains among which includes; 1. Limited Storage Space. 2. Increasing Product Variety. 3. Increasing Demand. 4. Increasing Cost of Real Estate. That been said, keeping high quantity of motorcycle (different varieties) as finished goods inventory is not economical (high investment into real estate for storage space) and cannot be achieved with the present limited storage space so therefore, a balance is required to be reached between the different manufacturing policies.
  • 5.
    5 Fig 1.0 BoulosQRD Department
  • 6.
  • 7.
    7 These policies include; Make to Stock.  Make to Order. o MTS (Make to Stock) literally means to manufacture products for stock based on demand forecasts, which can be regarded as push-type production. MTS has been required to prevent opportunity loss due to stock out and minimize excess inventory using accurate forecasts (1). o MTO (Make to Order) is a manufacturing process in which manufacturing starts only after a customer's order is received. Forms of MTO vary, for example, an assembly process starts when demand actually occurs or manufacturing starts with development planning (1). In Boulos’s manufacturing and assembly plant, but policies are used since proper balance between both will ensure the best efficiency of the assemble line. Given that make to stock policy requires storage space, investment already has been made in the proper storage facilities for raw materials inventory (unit components and part sub assembly storage). This project therefore addresses the investment in storage facilities for finished goods inventory as this report highlights the implementation stage of the project (fabrication of pallet racks for motorcycle CBU storage).
  • 8.
    8 2.0 PROJECT MANAGEMENT 2.1.InitialImplementation Phase The first rack was fabricated without major management tools in place. Material for each unit parts were prepared as at when needed and not beforehand therefore resulting in a lot of dimensional inaccuracy while cutting. Although the quality of weld and alignment were good, lack of proper management lead to major error induced by nature of the material itself and also during preparation. The resulting motorcycle rack was observed to be a little bit slanted as shown in fig *** and therefore was below the intended quality standard. In order complete the production of the rack, other actions had to be carried out to help correct the error. As a member of the fabrication team (where I acquired major experience needed to complete those I have acquired unset either through action or observation) I was able to articulate all activities carried out in their sequence of relevance and this helped me to put into perspective the planning of the next phase of the project. Fig 2.0
  • 9.
    9 2.2. Project Implementation(2nd Phase) In the second phase of fabrication, project management tool and techniques were invoked via proper planning, directing, supervision and control of all activities taking place and resources required for the project execution. In order to avoid the errors made during the fabrication of the Pilot model (both measurement and material induced), concept of modularization was introduced. Modularization is a design approach that subdivides a system into smaller parts called modules or skids that can be independently created and then used in different systems. This was achieved by breaking up major parts of the design into modules (Modules A, Module B and Add-ons) and designing of welding fixture for the fabrication of each module as shown in fig ***** and fig ****. The introduction of modularization and welding fixture helped in achieving the following;  Helped to correct the inherent error of the work material  Ensure dimensional accuracy  reduce production time  Argumentation With this concept in place, the resulting outputs were consistent, dimensionally accurate and of a better quality than that fabricated in the first phase as shown in fig 2.3.
  • 10.
  • 11.
  • 12.
  • 13.
    13 3.0 PROJECT WORKFLOW Asprojects needs to be managed in order to achieve execution which meets the project expectations and client’s (CKD Department) requirement, this project was designed to follow a structured flow of activities. As given below in fig 3.0, the project workflow includes the following; A. Project Preparation B. Project Proposal. C. Project Approval D. Material Procurement E. Work Place Preparation F. Project Work Plan G. Material Preparation H. Commencement of Design Fabrication.
  • 14.
  • 15.
    15 3.1. Project Preparation: Atthe stage, the proper understanding of the customer’s need was established before the initiation of the designing stage. Among the things considered includes;  Design Methodology  Structural Analysis  Bill Of Material  Pallet Rack Operational Requirements  Pallet Rack Safety Considerations  Storage Capacity And Space Calculations  Modular Pallet Racking System Layout  Design Benefits And Value 3.2 Project Proposal: At this stage, all enquiries gotten from the document generated from the project preparation in addition with information such as;  Storage Capacity And Space Calculations  Modular Pallet Racking System Layout  Design Benefits And Value  Detailed Engineering drawings of the designs for the purpose of fabrication (fig 3.1) formed for the proposal for the implementation of the project.
  • 16.
    16 Fig 3.1 3.3. MaterialSelection and Procurement: The selection was carried out after different materials have been tested and simulated with the maximum load possible using a CAD software (Autodesk Inventor). This helped in analyzing the stress signatures of each materials and thus picking the one which meets the load requirement plus economical advantage. After the approval of the pallet rack project, procurement of the required materials was carried out after which, implementation of the project work plan commenced.  Since the initial purpose of the project was to design industrial grade pallet racks using locally available material, the materials selected include; o Angle Iron 70X70x5 o Angle Iron 50x50x5 Procurement of the required quantity of steel materials were there for carried out locally as local steel material were used.
  • 17.
    17 3.4. Tools andEquipment: During the implementation of the project, the following tools and equipment were used; 1. Scriber 2. Tri-square 3. Meter Rule 4. Hand Cutting/Grinding Machine 5. Cut-off/Fixed Cutting Machine 6. Industrial Grade Welding Machine 3.5. Workplace Preparation:  This was carried out by deliberately allocating resources (workplace, machinery and man power) for the commencement of the clearing process.  The allocated section was cleared and arranged in other to accommodate the size of the project.  One industrial arc-welding machine was allocated.  Between 2-5 manpower were used for the clearing of the project workplace.
  • 18.
    18 3.6. The WorkPlan: Given below in Fig *** is the fabrication work plan for motorcycle pallet rack. Fig 3.2 3.7. Material Preparation:  Engineering Dimensioning and Marking out operation on the respective pallet rack component material  Cutting to size of already marked out pallet rack component material  Arrangement of prepared materials on worksite 3.8. Work Breakdown Structure for the Fabrication Processes A work breakdown structure (WBS) is a deliverable-oriented decomposition of a project into smaller components thereby organizing the team's work into manageable sections. As the stated definition implies, the WBS for the pallet rack project is given bellow;
  • 19.
    19 Work Breakdown Structure A.Fixture Fabrication A1. Design of welding fixture X and Y A2. Preparation of material for welding fixture X A3. Fabrication of welding fixture X for module A&B A4. Preparation of material for welding Fixture Y A5. Fabrication of welding fixture Y for module C, D, E, F B. Module A&B Fabrication B1. Arrangement of unit component for module A on the welding fixture X B2. Welding of the joints of the arranged module B3. Turning over of the welded module to complete the welding operation B4. Arrangement of unit component for module B on the welding fixture X B5. Welding of the joints of the arranged module B6. Turning over of the welded module to complete the welding operation C. Module C, D, E, F Fabrication C1. Arrangement of unit component for module C and welding of joints C2. Welding of the joints of the arranged module C3.Turning over of the welded module to complete the welding operation C4. Arrangement of unit component for module F and welding of joints C5. Welding of the joints of the arranged module C6.Turning over of the welded module to complete the welding operation
  • 20.
    20 C7. Arrangement ofunit component for module D and welding of joints C8. Welding of the joints of the arranged module C9.Turning over of the welded module to complete the welding operation C10.Arrangement of unit component for module E and welding of joints C11.Welding of the joints of the arranged module C12.Turning over of the welded module to complete the welding operation D. Assemble of All Modules D1. Transfer of the welded modules to the assembly site D2. Support of both Modules A&B with the a standing medium to ensure proper vertical alignment D3 Placement, alignment of module C in its designated position and welding of contact points with modules A&B D4 Placement, alignment of module F in its designated position and welding of contact points with modules A&B D5.Placement, alignment of module D in its designated position and welding of contact points with modules A&B D6. Placement, alignment of module E in its designated position and welding of contact points with modules A&B E. Addition of Add-On Components E1. Positioning, alignment and welding of add-on components
  • 21.
    21 F. Finishing Touches F1.Grinding of rough edges F2. Painting of the rack Given below in fig ** is the Gantt chart for the fabrication process of the motorcycle pallet rack. Fig 3.3 Processes WBDS Modules Type ofJig 1 12 13 14 15 16 17 18 A1 A2 A3 A4 A5 B1 A X B2 A X B3 A X B4 B X B5 B X B6 B X C1 C Y C2 C Y C3 C Y C4 D Y C5 D Y C6 D Y C7 E Y C8 E Y C9 E Y C10 F Y C11 F Y C12 F Y D1 D2 D3 D4 D5 D6 E E1 F1 F2 DocumentNumber Approval Date 3/12/2015 4/12/2015 4/12/2015 Document Description GANGCHARTFORFABRICATION PROCESSOFMOTORCYCLEPALLETRACK Author Issued by Approvedby AlukoAdedeji OlusegunAdekoya OlusegunAdekoya AuthorDate Issuance Date BEL/16/005/FAB-GC/310/AA/000 GANTT CHART FOR FABRICATION Process OF MOTORCYCLE PALLET RACK A B C D F 2 3 4 8 9 10 11 Days
  • 22.
    22 4.0 PROJECT SAFETYCONSIDERATIONS In any operation, safety of the workers and other resources is of paramount interest and consideration. Therefore, apart from the fact that safety in terms of allowance for excess loading conditions has been built into the design, other safety precautions and ethics were used and encouraged during the fabrication process. Some of the safety considerations are; 1. Use of PPE such as a. Safety Google b. Helmet and Shield c. Protective clothing 2. Proper ventilation of welding environment 3. Use of appropriate equipment by authorized personals