1 Jessica Joan Lindenau-Leon Woodbury University Detail Design Project Orange Rubber Wall System Hollywood Studio, Woodbury University Hollywood, California
2
transition page
1 Jessica Joan Lindenau-Leon Woodbury University Constructions Project Wooden Puzzle Box
poplar woodshop sanding two  colour waxes three pieces 2 1 2 3 4 5
transition page
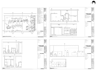
1 Jessica Joan Lindenau-Leon Woodbury University Construction Documents Project Music Retail Partner: Sharon Ko Hollywood & Highland Hollywood, California
2
3
4
transition page
h: 907.835.5604 c: 818.919.8713 To see more of Jessica Joan Lindenau Leon Visit these website at once! krop.com/jessicajoan flickr.com/photos/sedena

J Lindenau Leon Handy Work

  • 1.
  • 2.
    1 Jessica JoanLindenau-Leon Woodbury University Detail Design Project Orange Rubber Wall System Hollywood Studio, Woodbury University Hollywood, California
  • 3.
  • 4.
  • 5.
    1 Jessica JoanLindenau-Leon Woodbury University Constructions Project Wooden Puzzle Box
  • 6.
    poplar woodshop sandingtwo colour waxes three pieces 2 1 2 3 4 5
  • 7.
  • 8.
    1 Jessica JoanLindenau-Leon Woodbury University Construction Documents Project Music Retail Partner: Sharon Ko Hollywood & Highland Hollywood, California
  • 9.
  • 10.
  • 11.
  • 12.
  • 13.
    h: 907.835.5604 c:818.919.8713 To see more of Jessica Joan Lindenau Leon Visit these website at once! krop.com/jessicajoan flickr.com/photos/sedena