CITY OF ALAMO HEIGHTS
COMMUNITY DEVELOPMENT SERVICES DEPARTMENT
CITY COUNCIL AGENDA MEMORANDUM
TO: Mayor and City Council Members
FROM: Lety Hernandez, Director of Community Development Services
SUBJECT: Case No. 864 F – 224 Elmview W
Request of Navin and Jamie Nikam, owners, for the significance review of the existing
main structure and compatibility review of the proposed design located at 224 Elmview W
in order to remodel and add to the new single-family residence under Demolition Review
Ord. 1860 (April 10, 2012).
DATE: October 25, 2021
BACKGROUND INFORMATION
The property is zoned SF-A and is located on the south side between Nacogdoches and Columbine.
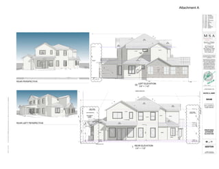
The applicant is proposing an addition to the rear of the main structure in addition to a 2nd
story
addition. The interior of the existing residence will also be remodeled.
On October 06, 2021, the Board of Adjustment considered a request for two (2) variances and the
board voted to approve a 4ft 9-½ in side setback and the encroachment of the air conditioning pad
into the minimum 3ft side yard setback. Both variances are on the west side of the main structure.
POLICY ANALYSIS
The project is subject to Demolition Review due to the proposed 60.53% of demolition to the
existing main structure’s roof in order to add the proposed 2nd
story addition.
Staff found no historical or architectural significance to the existing main structure.
Lot Coverage Existing Proposed
Lot Area 9,880 9,880
Main House 1764 2316
Front Porch 41 85
Side Porch
Rear Porch 284 230
Garage Footprint 525 525
Lot Coverage / Lot Area 2,614 / 9,880 3,156 / 9,880
Total Lot Coverage 26.5% 31.9%
Floor Area Ratio Existing Proposed
Lot Area 7,500 7,500
Main House 1st Floor 1289 1962
Main House – 2nd
Floor 644 702
Garage 1st Floor 500 650
FAR / Lot Area 2433 / 7500 3314 / 7500
Total FAR (Max. 47% allowed) * 23.1% 39.4%
 Proposed building height – 30ft
o Stucco Siding for new additions – existing faux rock to remain
o Composition Shingle Roof
 FAR – Max 50% allowed with Bonuses
o .02 for single story accessory
o .04 for preservation of 50% of main structure
The Architectural Review Board conducted the compatibility review at their October 19, 2021
meeting and voted unanimously to recommend approval of the design as compatible with the
consideration of window continuity with the addition and existing structure.
FISCAL IMPACT
No projected fiscal impact from this project has been calculated.
ATTACHMENTS
Attachment A – Web Packet
Attachment B – Response Cards
______________________
Lety Hernandez
Director
______________________
Buddy Kuhn
City Manager
Attachment A
Attachment A
Attachment A
Attachment A
Attachment A
Attachment A
Attachment A
Attachment A
Attachment A
Attachment A
Attachment A
Attachment A
Attachment A
Attachment A
Attachment A
Attachment A
Attachment A
...
at ih
Community Development Services Department located at 6116 Broadway St. You may also contact Lety
Bernandez (lhernaiideza aIamoheihtstx.jov) by email or our office at (210) 826-0516 for additional
information regarding this case.
Suhnut your comments by returning this card to our office via US Mail or in-person. You may also submit them
via email to lhernandezalamolwightstx.gov. Submit all comments before the meeth,gdatc.**
Case No. 864F - 224 Elmvjew W
Check one: I hereby 1/upport oppose the project.
Check one: I have Aiave not reviewed the project’s plans or packet submittal items (if applicable)
Comments:
(
and at the
Community Development Services Department located at 6116 Broadway St. You may also contact Lety
Hernandez (Ihernandeza atamoheihtstx.ov) by email or our office at (210) 826-0516 for additional
,—4nformation regarding this case.
Subnilt your comments by returning this card to our office via US Mail or in-person. You may also submit them
via email to llwrnandez(ã)alamoheightstx.. Submit all comments be ore tite meeting date.’
Case No. 6MF - 224 Elmview W
Check one: I hereby Esupport oppose the project.
Check one: I __have -“ have not reviewed the project’s plans or packet submittal items (if applicable)
Comments:
I—
Attachment B
Community Development Services Department located at 6116 Bmadway St. You may also contact Lety
Rernandez (lhernandeza alaInolIei2htstx.ov) by email or our office at (210) 826-0516 for additional
information regarding this case.
your comments by returnmg this card to our office via US Mail or in-person. You may also submit them
via email to Jhemand&ualamolwightstx.gov. Submit all comments before the nwetingi:’
Case No. SMF - 224 Elmview W
Check one: I hereby /upport oppose the project.
Check one: I iZave not reviewed the project’s plans or packet submittal items (if applicable)
Comments: t’) Lc AtLIII 19-.
J
f;/
b
__ __ ______
____
fL. -1-(
I
Attachment B

Item # 7 224 W. Elmview

  • 1.
    CITY OF ALAMOHEIGHTS COMMUNITY DEVELOPMENT SERVICES DEPARTMENT CITY COUNCIL AGENDA MEMORANDUM TO: Mayor and City Council Members FROM: Lety Hernandez, Director of Community Development Services SUBJECT: Case No. 864 F – 224 Elmview W Request of Navin and Jamie Nikam, owners, for the significance review of the existing main structure and compatibility review of the proposed design located at 224 Elmview W in order to remodel and add to the new single-family residence under Demolition Review Ord. 1860 (April 10, 2012). DATE: October 25, 2021 BACKGROUND INFORMATION The property is zoned SF-A and is located on the south side between Nacogdoches and Columbine. The applicant is proposing an addition to the rear of the main structure in addition to a 2nd story addition. The interior of the existing residence will also be remodeled. On October 06, 2021, the Board of Adjustment considered a request for two (2) variances and the board voted to approve a 4ft 9-½ in side setback and the encroachment of the air conditioning pad into the minimum 3ft side yard setback. Both variances are on the west side of the main structure. POLICY ANALYSIS The project is subject to Demolition Review due to the proposed 60.53% of demolition to the existing main structure’s roof in order to add the proposed 2nd story addition.
  • 2.
    Staff found nohistorical or architectural significance to the existing main structure. Lot Coverage Existing Proposed Lot Area 9,880 9,880 Main House 1764 2316 Front Porch 41 85 Side Porch Rear Porch 284 230 Garage Footprint 525 525 Lot Coverage / Lot Area 2,614 / 9,880 3,156 / 9,880 Total Lot Coverage 26.5% 31.9% Floor Area Ratio Existing Proposed Lot Area 7,500 7,500 Main House 1st Floor 1289 1962 Main House – 2nd Floor 644 702 Garage 1st Floor 500 650 FAR / Lot Area 2433 / 7500 3314 / 7500 Total FAR (Max. 47% allowed) * 23.1% 39.4%  Proposed building height – 30ft o Stucco Siding for new additions – existing faux rock to remain o Composition Shingle Roof  FAR – Max 50% allowed with Bonuses o .02 for single story accessory o .04 for preservation of 50% of main structure The Architectural Review Board conducted the compatibility review at their October 19, 2021 meeting and voted unanimously to recommend approval of the design as compatible with the consideration of window continuity with the addition and existing structure. FISCAL IMPACT No projected fiscal impact from this project has been calculated. ATTACHMENTS Attachment A – Web Packet Attachment B – Response Cards ______________________ Lety Hernandez Director ______________________ Buddy Kuhn City Manager
  • 3.
  • 4.
  • 5.
  • 6.
  • 7.
  • 8.
  • 9.
  • 10.
  • 11.
  • 12.
  • 13.
  • 14.
  • 15.
  • 16.
  • 17.
  • 18.
  • 19.
  • 20.
    ... at ih Community DevelopmentServices Department located at 6116 Broadway St. You may also contact Lety Bernandez (lhernaiideza aIamoheihtstx.jov) by email or our office at (210) 826-0516 for additional information regarding this case. Suhnut your comments by returning this card to our office via US Mail or in-person. You may also submit them via email to lhernandezalamolwightstx.gov. Submit all comments before the meeth,gdatc.** Case No. 864F - 224 Elmvjew W Check one: I hereby 1/upport oppose the project. Check one: I have Aiave not reviewed the project’s plans or packet submittal items (if applicable) Comments: ( and at the Community Development Services Department located at 6116 Broadway St. You may also contact Lety Hernandez (Ihernandeza atamoheihtstx.ov) by email or our office at (210) 826-0516 for additional ,—4nformation regarding this case. Subnilt your comments by returning this card to our office via US Mail or in-person. You may also submit them via email to llwrnandez(ã)alamoheightstx.. Submit all comments be ore tite meeting date.’ Case No. 6MF - 224 Elmview W Check one: I hereby Esupport oppose the project. Check one: I __have -“ have not reviewed the project’s plans or packet submittal items (if applicable) Comments: I— Attachment B
  • 21.
    Community Development ServicesDepartment located at 6116 Bmadway St. You may also contact Lety Rernandez (lhernandeza alaInolIei2htstx.ov) by email or our office at (210) 826-0516 for additional information regarding this case. your comments by returnmg this card to our office via US Mail or in-person. You may also submit them via email to Jhemand&ualamolwightstx.gov. Submit all comments before the nwetingi:’ Case No. SMF - 224 Elmview W Check one: I hereby /upport oppose the project. Check one: I iZave not reviewed the project’s plans or packet submittal items (if applicable) Comments: t’) Lc AtLIII 19-. J f;/ b __ __ ______ ____ fL. -1-( I Attachment B