Graduation Project 2014
Indian Kitchen
Sponsor
Student
Kitchen grace (India) Pvt. Ltd.
Tanmayee Palwe
Industrial Design (Interior Space & Equipment Design)
Industry Guide
Mr.Snehal Vasani Prof. Vasudha Karhadkar
Faculty Guide
MIT INSTITUTE OF DESIGN
MAEER’s
The Graduation Project Evaluation Jury recommends
TANMAYEE PALWE
to be awarded Graduation Degree of the MIT Institute of Design,Pune
IN INDUSTRIAL DESIGN ( INTERIOR SPACE & EQUIPMENT DESIGN)
herewith, for the project titled “INDIAN KITCHEN”
MEMBERS :
NAME ORGANISATION SIGNATURE
GRADUATION PROJECT 2014
PG PROGRAMME
Chairperson of the jury
MIT INSTITUTE OF DESIGN
MAEER’s
I would like to express my gratitude to all those who have helped me
and supported me during my diploma project.
I want to thank Kitchen Grace for giving me this opportunity to
commence this project, to do the required research work and
provide a complete learning experience.
A special thanks to Mr.Snehal Vasani, Mr.Ranjit Ghorpade for their
valuable time, guidance and feedback during my period of work with
them.I would also like to thank the entire team at Kitchen Grace for
supporting me in everystage of my project.
My deepest thanks to our Head of the department, Prof. Vasudha
Karhadkar for guiding me and gradually change my design thinking,
to successfully come up with displayed design solutions.
Furthermore, I would like to thank Prof. Rajan Iyer and Prof. Amit
Deshmukh for always supporting me during my project.
Last but not the least, I would deeply thank my family and friends
and the entire MITID family for all their support and well wishes.
Thank you.
- Tanmayee Palwe
PG ISED.
Acknowledgement
01
1.1 About Kitchen Grace 07
1.2 Oraganisation structure 08
1.3 Materials 09
1.4 Manufacturing process 11
1.5 Painting process 15
1.6 Kitchen Specifications 22
1.1 Refined design brief 1 112
1.2 Activities study 114
1.3 Food requirement study 129
1.4 Utensils requirement study 136
1.5 Storage zoning 145
1.1 Background of given problem statement 24
1.2 Problem statement 25
1.3 Initial design brief 26
Introduction
02 Design Brief 1
1.1 Basic research about Kitchen 29
1.2 Market research 64
1.3 User research 71
Research
05
25
2703
Content
Research Analysis04
Bibliography06
1.1 Problem statement 152
1.2 Refined brief 10
1.3 Concepts 166
Design Brief 205
Retrospection07
107
151
198
199
Introduction01
Kitchen Grace
MODULAR KITCHEN
Kitchen Grace imports particle boards and key hardware fittings
from Europe.
Mr.Snehal Vasani
He is an architect by profession.
After graduating in 1970 from Sir J.J.
College of Architecture, Mr.Vasani has had
a plethora of practical work experience
in Mumbai , and The National Institute
of Design, A’bad in architectural, interior
and exhibition design.
itchen Grace is the first modular kitchen manufacturing
company in India. Since 1988,a time when modular kitchen was
not very familiar to the Indian Consumer, Kitchen Grace has
specialized in the manufacture of modular kitchen furniture
and cabinets.
The company is headed by the Snehal Vasani. He has also worked
in Bahrain for more than a decade in various linked industries
ranging from construction, interior design to modular kitchens.
Kitchen Grace has an excellent team of engineers and other
professionals for high quality execution. Kitchen Grace has
adapted European technology for Indian needs with imported
machines for high quality and consistency.
K
Tanmayee Palwe | Indian Kitchen | MIT Institute Of Design | 07
1.1 About Kitchen Grace1.1
KITCHEN GRACE
Customer care
department
Check for design & dimension
Planning & designing
department
Production
department
dispatcher
1] 2] Packout
Order is received
(Workorder / job card)
Cutting plan Production
measurement on site
KG Designer takes the Dealer’s designer
takes the
measurement on
site & send it to KG
If the design is in other format then
convert it in to the KCW format which
KG follows.
Quotation
Info to customer care /
Material dispatch
Direct customer KG Dealer
(Flat pack / assembly pack)
01 02 03
Tanmayee Palwe | Indian Kitchen | MIT Institute Of Design | 08
Organization structure1.2
LAMINATE
8’ x 4’
ALUMINIUM
FRAME
3m (l) x
45 mm(w)
GLASS
SOLID WOOD
PARICLE BOARD
BACKLITE 8’ x 4’
VENEER 8’ x 4’
MATERIAL SiZES
MARINE PLY
8’ x 4’
MDF 8’ x 4’
-
-
0.6 mm
1 mm
1.5 mm
20 mm
4 mm
6 mm
8 mm
18 mm BSL
2.7 mm BSL
1mm
THICKNESS
6mm,8mm,12mm
(Customised)
16 mm
17 mm
18 mm
18 mm BSL
17mm PLANE
16 mm
4mm,8mm,12mm
(Customised)
-
Clear glass
Clear glass
Clear glass
Extra clear glass
Oak wood
Steam beech
Walnut wood
Wallnut
Zebrano
White ash
White oak
TYPE
-
-
-
-
-
-
-
-
Novapro drawer
Glass shelf
APPLICATION
Drawer bottom
-
-
-
-
-
-
Marine ply
MDF + PB + solidwood
(Customized)
In kitchen grace, 90% of
Marine ply is used for the
manufacturing of kitchen units.
- Water resistent
- Does not swell
- Termide resistant
- Marine ply
on one another.
is made up of
slices of wood of thickness not
more than 0.5 mm are pasted
- It is stonger than MDF & PB
01
90 %90 %
10 %
Tanmayee Palwe | Indian Kitchen | MIT Institute Of Design | 09
Materilals1.3
MDF
-
- It is lighter than solid wood.
- It can be drilled and routed.
- It is available in 4, 8, 9, 12, 15,18,
25, 30 mm thicknesses.
PARTICLE BOARD
- Particle board is made of the
chips or the waste of the trees &
rice , wheat straws.
- It is lighter material.
- It can be drilled but can not be
routed so easily.
- It is available in 9, 12, 15, 18, 25
mm thicknesses.
SOLID WOOD
- Solid wood is very expensive than
other type of materials.
- In kitchen grace Teak wood,
Ash wood,Oak wood, Wallnut wood
are generally used for making
kitchen units.
MDF is Medium density fiber,is
made of fine saw dust or fine wood
fiber as its name suggest.
Tanmayee Palwe | Indian Kitchen | MIT Institute Of Design | 10
In this process, after applying the adhesive , a sheet of laminate is
place or glued on the MDF / PB / PLY.
This is the first process in making the kitchen. It is the process called
LAMINATING, in which the adhesive is applied on the the sheet of MDF /
PB / PLY.
01
02
Tanmayee Palwe | Indian Kitchen | MIT Institute Of Design |11
Manufacturing process1.4
Then this sheet is kept under the HOT PRESS machine for the
temperature of 80 to 100 degree celcius.
03
04
Tanmayee Palwe | Indian Kitchen | MIT Institute Of Design | 12
After the hot press is done, sheet gets cut into pieces according to the
cutting plan.
After cutting, the sides of the sheet get covered with the band of PVC
or ABS to hide the exposed edegs of the sheet.
This process is known as EDGE BANDING process.
05
06
Tanmayee Palwe | Indian Kitchen | MIT Institute Of Design | 13
This is the HINGE BORING machine used for making the grooves in the
wooden planks for the hinges application.
This is the CNC MACHINE used for drilling as well as routing application.
07
08
Tanmayee Palwe | Indian Kitchen | MIT Institute Of Design |14
Polyster coat
Sanding
Sanding
Matt Gloss (PU paint)
Surface Edge
1st coat
Polyster coat 2nd coat
Sanding
Clear laquer
Protective application
Packing
Tanmayee Palwe | Indian Kitchen | MIT Institute Of Design | 15
Painting process1.5
This is the first process where the wooden plank is coated with the
polyster in manual paint booth.
After the first and second polyster coat,the SANDING is done on the
top surface of the wooden plank.
01
02
Tanmayee Palwe | Indian Kitchen | MIT Institute Of Design |16
This SANDING MACHINE is used to sand the edge of the wooden plank
after the first and second coat of the polyster. This process is called as
EDGE SANDING. .
03
04
Tanmayee Palwe | Indian Kitchen | MIT Institute Of Design | 17
Before applying the PU paint, the wooden plank is should be dust free.
This is the AUTOMATIC OSCILATING SPRAY BOOTH , where the plank
is get painted with the PU paint,matt coat and the clear laquar.
It is movable which sprays the paint evenly on the wooden plank.
05
06
Tanmayee Palwe | Indian Kitchen | MIT Institute Of Design | 18
This is an OVEN, in which the painted wooden plank is keeps for 6 to 8
hours for the drying purpose.
On this stand the planks are keep for the inspection.
07
08
Tanmayee Palwe | Indian Kitchen | MIT Institute Of Design |19
If there is uneven surface on the plank then it is BUFF & SAND with this
hand machine for minor correction & makes it more shiny.
After buffing it gets covered with the protective plastic film.
09
10
Tanmayee Palwe | Indian Kitchen | MIT Institute Of Design | 20
For STAINING process,first they apply the stain on the solid wood
& wipe it in some seconds after hand spraying. Again they apply
the clear laquer on it after drying the first coat.
After the painting, the materials get assembled according to the
plan.
10
Tanmayee Palwe | Indian Kitchen | MIT Institute Of Design | 21
HEIGHT
LENGTH 150 / 200 / 250 / 300 / 450 / 600 / 800 /
900 / 1200
560 / 580
700
DEPTH
BASE UNITS
HEIGHT
LENGTH 150 / 200 / 250 / 300 / 450 / 600 / 800 /
900 / 1200
300 / 320 / 330
600 / 700 / 800 / 900
DEPTH
WALL UNITS
HEIGHT
(MID)
HEIGHT
(TALL)
LENGTH
560 / 580
1200 / 1500 / 1720
1950 / 2000 / 2020 / 2040
300 / 450 / 600 / 900
DEPTH
TALL UNITS
WALL UNITS
WALL UNITS
BASE UNITS
TALL UNITS
DADO
DADO
Modular kitchen comprises of three units - 01 Wall unit
02 Base unit
03 Tall unit
Kitchen grace makes these units in following
dimensions as per the space availabilty & users
requirement.
Tanmayee Palwe | Indian Kitchen | MIT Institute Of Design | 22
Kitchen Specifications1.6
Design brief02
1.1
Kitchen grace India Pvt.ltd manufactures Modular kitchen for Indian users according to europian standards. Now they are in
to a sector for manufacturing kitchen units according to indian standards, workflows and activities takes place in indian kitchen.
Kitchen grace till now has operated in higher end market but for this unit to be utilized effectively, Kitchen gracewill have to
focuss on middle end market too. It is achivable by making kitchen unit cost effective and yet offers unique value.
Background of given problem statement
Tanmayee Palwe | Indian Kitchen | MIT Institute Of Design | 24
1.1
To Design an Economy Range kitchen for an Indian Family residing in western Region belonging to Maharashtra keeping the
Indian way of cooking & Indian Ergonomic standards.
To do the required research & study of the user & the market.To give Layout options considering a standard size of kitchen
& Indian Equipments used in the space.
To Design the modules for the same using the available materials or suggest any alternate material .To do the detailing of the
modules with permutations & combinations as required. To make a final mock-up of the entire sample kitchen.
Initial problem statement
Tanmayee Palwe | Indian Kitchen | MIT Institute Of Design | 25
1.1
To do market research to understand user perception
about modular unit, their needs and requirements & their
buying behaviour.
To do user research to understand user problems in
kitchen space. Their needs, buying behaviour and storing
pattern,their daily activities in kitchen space as well as
workflows and ergonomic problems.
Initial brief
Market research
User research
01
02
Tanmayee Palwe | Indian Kitchen | MIT Institute Of Design | 26
1.1
Research03
Basic research about Kitchen1.1
A kitchen is a room or
area for preparing &
cooking food in both
domestic & commercial
context.
It is a place to store
raw food items,
containers & utensils
used for preparing,
cooking & serving
purpose.
It is a place to eat food
as well as for required
cleaning purposes.
KITCHEN
What is
Primary need Secondary needs
KITCHEN
0101 02
Kitchen
Tanmayee Palwe | Indian Kitchen | MIT Institute Of Design | 29
Commercial Kitchen01
A Commercial kitchen is a private area for cooking
usually for service or large quantities for a buisness
purpose.
01
Types of Kitchen
Commercial Kitchen types
+
Commercial
Kitchen
Restaurant Kitchen Canteen Kitchen
Commercial kitchens typically have tiled walls and floors and use
stainless steel for other surfaces like workbench, but also for door
and drawer fronts because these materials are durable and easy to
clean.
Commercial kitchens typically include much larger spaces than
traditional residential kitchens.
- Educational centers
- Cruize
- Hospitals - Work Places
- Hotels
- Army barracks
- Railway
Catering Baking Grill Saute
These kitchens typically includes four working stations.
Tanmayee Palwe | Indian Kitchen | MIT Institute Of Design | 31
Residential Kitchen01 A Residential kitchen or Domestic kitchen is an area
in a house for cooking food for family and also used
for various activities.
Residential Kitchen types
The family kitchen not only has to deal with cooking and
eating, but may entail the supervision of children, and
other activities.
These kitchen becomes a status symbol which can have
high range cooker, larger and more expensive appliances
set up in the kitchen.
Family
Luxury
Cupboard
These kitchen have sink unit and open shelves above
and below, which saves the cost of cabinets .
Tanmayee Palwe | Indian Kitchen | MIT Institute Of Design |33
Attributes for kitchen space
Systematic
Sticky
Sticky
Dry
Open
Motion
Natural
Rough
Large
Smooth
Colorful Delicate
Festive
Hard
Aromatic
Stinky
Close
Freedom
Permanent
Warm
Simple
Feminine
Messy
Straight
Contamination
Edgy
WarmDark
Nutritious Pure
Healthy
Ancient
WetFast Slow
Tasty
Traditional
Strong
Light
Adjustable
Bulky
Heavy BigSmall
Clean
Tasteless
Salty
Curved
Fresh
Sharp Temporary
Dirty
Hot
Bright
Contemporary
Modern
Clear
FrostyNeat Burning
HygienicSmoky Delicious
Oily
KITCHEN
(Semi Private
Zone)
Tanmayee Palwe | Indian Kitchen | MIT Institute Of Design | 34
FOCUSED AREA RESIDENTIAL KITCHEN
Tanmayee Palwe | Indian Kitchen | MIT Institute Of Design | 36 01
History of kitchen
29,000
BC
753
BC
1490
When early man learnt how to control fire
approximately 400,000 years ago, they discovered
its incredible power of cooking food. It is believed
that cooking on hot rocks first became substitute
for cooking food.
Cooking methods probably used easy to obtain
items such as plant leaves, grass and stones.
During bronze age of world’s earliest
urbanised communities, the indus
valley civilisation were resourceful
people and first to have weatherproof
cooking space.
Each family hand crafted their mud
hut home and euipped with an indoor
oven.
Later on ventilation was a real issue in
cooking space because of major smoke
problem.This led to advent of chimneys
and raised hearths, meaning cooks no
longer had to sit on the floor and
chocking smoke was redirected to the
skies.
Central hearth
15th
Food was cooked on central hearths in large,
high ceilinged halls. Smoke drifted out of
unglazed windows or a
hole in the roof.
Century
18th
Century
Tanmayee Palwe | Indian Kitchen | MIT Institute Of Design | 37
In the middle of 15th - 18th century many technological advances
brought major changes to kitchen.There is invention of stove, range
and oven takes place step by step.
- 1797
Built of massive brick providing
with door to regulate air intake.
Two roasting ovens and a hot water
boiler were also included
1843 1912
Beecher's "model kitchen"
String study
Catharine Beecher's was the first inventor for sytematic kitchen
design based on ergonomics.
The design included regular shelves on the walls, ample work
space, and dedicated storage areas for various food items.
Beecher even separated the functions of preparing food and
cooking it altogether by moving the stove into a compartment
adjacent to the kitchen.
Christine Fredericks first used the string study to optimize
the workflow in kitchens. Her studies revealed that unnecessary
distances were being covered due to poor kitchen layouts &
showed the arrangement of kitchen cabinets and appliances
had a huge impact on distances traveled and also the time
spent in the kitchen.
The string study is a method of measuring work processes
and establishes correct and incorrect patterns of work.
To identify a work pattern, a string is attached to the workers
body and at the end of the day the length of string used is
measured to establish the distance covered.
Tanmayee Palwe | Indian Kitchen | MIT Institute Of Design | 38
1926
Frankfurt Kitchen
After Christine Fredericks solution on kitchen design, Architect Margarete
Schütte-Lihotzky developed the concept for the Frankfurt Kitchen.
Her primary goal in the design of the Frankfurt Kitchen was to reduce the burden
of women’s labor in the home.
The Frankfurt Kitchen should be regarded as part of a modernist effort to make
all aspects of daily life more rational, efficient and hygienic, and less
time-consuming.
The design of the kitchen was based on the principles of F.W. Taylor's 'Scientific
Management', a system that analysed the most efficient ways of undertaking
tasks in the home and workplace.
All the surfaces are easy to clean and without mouldings that trap dirt.
A noticeable feature is the bank of metal storage containers for commodities like
flour, rice and sugar. The housewife could easily reach them without even
opening a cupboard door. There were no electric refrigerators at the time, but a
low-level cupboard was vented from the outside to keep food cool. Even the disposal of
rubbish was considered: the waste-bin was in its own cupboard that could be
emptied from outside the kitchen in the hall.
It was the first fitted kitchen and the prototype for all subsequent built-in kitchens.
Three different sizes of kitchen were made for various sizes of flats.
The basic ideas include - Optimized kitchen flow
Shorter distances
Maximizing the space available
Tanmayee Palwe | Indian Kitchen | MIT Institute Of Design | 39
1944
After the great success of Catharine Beecher's first ‘kitchen model’, Christine Frederick’s ‘string study’ and Margarete’s ‘frankfurt
kitchen’ School of Architecture of the University of Illinois at Urbana-Champaign was founded in 1944.
KITCHEN WORK TRIANGLE was formalized by this University with the three main functions in a kitchen are storage,
preparation, and cooking.
Stove
Sink
Fridge
Use of Kitchen work triangle is for designing ergonomic and functional Kitchens.
Kitchen work triangle is noting but the a triangle between these three ‘work centres’-
01 The kitchen sink - the place where you clean and prepare
02 The refrigerator - the place where you’re likely to store food
03 The stovetop - the place where you cook
Kitchen Work Triangle
The main working functions in a kitchen are carried out between the hob, the sink
and the refrigerator. These three points and the imaginary line between them, make
up what kitchen experts call the "work triangle".
Tanmayee Palwe | Indian Kitchen | MIT Institute Of Design | 40
01 No leg of the triangle should be less than 4 feet (1.2 m) or more than 9 feet (2.7 m).
02 The sum of all three sides of the triangle should be between 13 feet (4.0 m) and 26 feet (7.9 m).
03 Cabinets or other obstacles should not intersect any leg of the triangle by more than 12 inches (30 cm).
04 If possible, there should be no major traffic flow through the triangle.
05 A full-height obstacle, such as a tall cabinet, should not come between any two points of the triangle.
Kitchen work triangle guidlines -
Tanmayee Palwe | Indian Kitchen | MIT Institute Of Design | 41
Kitchen work triangle led to a few common kitchen forms, commonly characterized by the arrangement of the kitchen cabinets and sink,
stove, and refrigerator:
There are 6 types of Kitchen layouts -
Kitchen Layouts
01 L Kitchen
02 U Kitchen
03 G Kitchen
04 Straight Kitchen
05 Gallery Kitchen
06 Island Kitchen
L-KITCHEN U-KITCHEN G-KITCHEN
STRAIGHT KITCHEN GALLERY KITCHEN ISLAND KITCHEN
Tanmayee Palwe | Indian Kitchen | MIT Institute Of Design | 42
Tanmayee Palwe | Indian Kitchen | MIT Institute Of Design | 43
Work triangle for kitchen layouts
FOCUSED AREA INDIAN RESIDENTIAL KITCHEN
India is a huge country consisting of various regions and cultures. Every region has their own
special cuisine.
Indian cuisine have many options and the dishes are characterized by the extensive use of various
Indian spices, herbs, vegetables and fruits.
“Vegetarianism” is also a name given to Indian Cuisine by many people.
The way every family has their own living style, the same applies to Indian cuisine also.
Each family of Indian cuisine includes a wide assortment of dishes and cooking techniques which
varies from region to region.
INDIAN FOOD
EAST CUISINE
SOUTH CUISINE
WEST CUISINE
Jammu kashmir cuisine
Maharashtra cuisine
Goa cuisine
Kerala cuisine
Andhra Pradesh
cuisine
West bengal cuisine
Manipur
cuisine
Assam
cuisine
Gujrath
cuisine
Rajasthan
cuisine
NORTH CUISINE
Punjab cuisine
Delhi cuisine
DIVERSITY
IN INDIAN
FOOD
Tanmayee Palwe | Indian Kitchen | MIT Institute Of Design | 46
It’s an ancient proverb “Breakfast like a King,
Lunch like a Prince, and
Dine like a Pauper”
Thus most Indians follow this and take their diet accordingly.
As compaired to other countries,Indian women spends most of the time in kitchen in preparing Breakfast, Lunch, Evening Snacks &
Dinner. It is a place where women start their day.
IMPORTANCE OF KITCHEN IN INDIAN CONTEXT
Breakfast Lunch Evening snacks Dinner
Food is an integral part of Indian culture,
It plays an important role in the everyday
family life and in the festival celebrations.
In India Food, Culture, Religion and
Indian festivals are all closely
related.
Food
Religion
Culture
Indian
Festivals
Tanmayee Palwe | Indian Kitchen | MIT Institute Of Design | 47
WHY IS INDIAN KITCHEN SO FAMOUS?
(Basics of Indian Kitchen)
Indian
different
cuisine
Indian
Utensils
01
Indian
utensils
03
Indian
festivals
& food
02
Cooking
requirements
04
- Garnishing items
- Condiments(Spices,
chutneys & pickles,
onions,mint)
Kinds of utensils used for
different purposes, festivals
& occasions.
Each festival in each region
has its own particular foods
and sweets appropriate to
the season and crops.
Indian food is classified
by traditions and region-
wise available spices,
herbs, vegetables &
fruits.
Tanmayee Palwe | Indian Kitchen | MIT Institute Of Design | 48
No.of
activities
during
preparation
05
Sitting
&
standing
work
05
Time
consuming
recepies
07
No.of food
items in a
meal
08
Necessary activities done
before actual cooking
Various postures
considered during the
process.
Number of processes
are involved in making
one dish which takes
long time.
Tanmayee Palwe | Indian Kitchen | MIT Institute Of Design | 49
Turmeric Cumin seeds Bay Leaves Black
mustard
Red chilly &
powder
SPICES & HERBS (FRESH & DRIED)
WHAT MAKES
“INDIAN FOOD”
SPECIAL &
DIFFERENT?
GingerClove
Kari patta
Cinamon GarlicCardamomBlack pepper
Coriander Shepa Basil leaves/Tulsi Mint
Tanmayee Palwe | Indian Kitchen | MIT Institute Of Design | 50
SPECIALITY OF
“INDIAN FOOD” INDIAN FOOD
Change Simple Delicious Stain Complicated
Roasted
VarietyOilyHealty Spices
Techniques Messy Hurbs Essence Aroma
Skills FlavorSweetSalty
HotCold Herbs CondimentsTasty
Time consuming recipes
NutritiousColorful Mixture Traditional
Tanmayee Palwe | Indian Kitchen | MIT Institute Of Design | 51
Indian modular and traditional utensils (which are still in use!)
Rice server
Laddle
(For dal, curry)
Turner / Palta’
(For omlet)
Skimmer / Zara’Turner SS Turner
CookingspoonsServingspoons
Measuringspoons
GLASS
SPOONS
Tanmayee Palwe | Indian Kitchen | MIT Institute Of Design | 52
Indian modular and traditional utensils (which are still in use!)
Flatpans
Nonstickpans
SS Saute pan
PANS
POTS
KADHAI
SSCookingpots
Stackablecookin
potswithcopper
baseIron kadhai Aluminium kadhaiNon stick kadhai Tadka’ kadhai
Tanmayee Palwe | Indian Kitchen | MIT Institute Of Design | 53
Indian modular and traditional utensils (which are still in use!)
GraterServing&Mixing
bowls
Strainer
SS bowls Glass / plastic bowls
Tea strainer Skimmer Sifter
Pressurecooker
GENERAL
Pincers/Pakkad’
Tanmayee Palwe | Indian Kitchen | MIT Institute Of Design | 54
Indian modular and traditional utensils (which are still in use!)
MasherLemon squeezer Tong / Chimata’ Whisk (to whip up curd
or egg)
GENERAL
Casserole
Churner / Ravi’
Pata Varvanta’
Ghee container / Loti’ Flat platter/paraat’
Khalbatta’
Polpat + belan’
Tanmayee Palwe | Indian Kitchen | MIT Institute Of Design | 55
Indian modular and traditional utensils (which are still in use!)
Idli steamer Puran Poli’ making machine
LidsforpansCrockery
Cup & Saucers Dinner set
Tanmayee Palwe | Indian Kitchen | MIT Institute Of Design | 56
RESIDENTIAL KITCHEN - “MAHARASHTRA
REGION”
FOCUSED AREA
IMPORTANCE OF FOOD IN “MAHARAHSTRA”
Meaning-
“While consuming food, one should remember God.
The food should be eaten as one is offering samagri in
hawan to God, that is neither too much nor too less and
consumed with positive attitude. Optimum intake of food
allows proper digestion.”
The people of this state also believe in offering their food first to
the lord as a thanksgiving for all that He has given.
Especially, on festive occasions, some specific mithais (sweets)
are offered such as Ukadiche Modak (Ganesh Chaturthi)and
Satyanarayan Puja Sheera.
Lunch Dinner
vdnI kv; 6eta nam ^ya &IhrIce,
,ecakufate6manetohnvhjhs
,hM/bR`upehnNAaaVTIVIjIrknvIj
]drwrn nohe janIje y)kmR
”
“
It is well known that the people of Maharashtra consider their food as Anna he poornabrahma meaning they consider anna,
or food, equal to Brahma, or the creator of the universe. Food is God and should be worshipped.
Tanmayee Palwe | Indian Kitchen | MIT Institute Of Design | 58
WHAT MAKES “MAHARAHSTRIAN FOOD” DIFFERENT?
MAHARASHTRIAN FOOD TYPES _ 1) Konkani food
2) Varhadi food
Grated cococnut
PeanutsKokum
Rice
Tamarind
Jaggery Bajri
Jowar
“STAPLE FOOD” OF MAHARASHTRA
Tanmayee Palwe | Indian Kitchen | MIT Institute Of Design | 59
Poha
Thalipith
Misalpav
Upma Puri bhaji
Tea
Sheera
Coffee
Breakfast MAHARASHTRIAN BREAKFAST
Tanmayee Palwe | Indian Kitchen | MIT Institute Of Design | 60
Lunch MAHARASHTRIAN LUNCH - Veg Thali
Papad
Poli
Puri
Masala
Rice
SweetdishKoshimbir
or
Salad
Tak
or
chass
Dry bhaji
Rice Dal
Gravy bhaji
Chutney
Regular Lunch Ocassional Lunch
A Maharashtrian meal can not be completed without “CHAPATI” or “BAJRA ROTI”.
Tanmayee Palwe | Indian Kitchen | MIT Institute Of Design | 61
Rice
Solkadhi Chapati
Fish Thali Chicken Thali
Lunch MAHARASHTRIAN LUNCH - Non-Veg Thali
“COCONUT” is a Special ingredient of Maharashtrian Nonveg Thali.
Fried fish
Tanmayee Palwe | Indian Kitchen | MIT Institute Of Design | 62
Modak
Chakli
Ladoo
Shrikhand
Pura poli
MAHARASHTRIAN FESTIVE FOOD
Requires - 01] Lot of time to make it 02) Special utensils 03] Space on countertop
Tanmayee Palwe | Indian Kitchen | MIT Institute Of Design | 63
Market Research1.2
Importance of MARKET RESEARCH for designing an INDIAN KITCHEN
01 Aesthetic value of kitchen unit - DIfferent finishes/forms
02 New Technology
03 Materials used for kitchen unit
04 Current trends
05 User requirements/needs
06 Market perception for modular units
07 Customer perception for modular kitchens
08 Brand analysis - New features / Any failure
09 Budget factor
Tanmayee Palwe | Indian Kitchen | MIT Institute Of Design | 65
Tanmayee Palwe | Indian Kitchen | MIT Institute Of Design | 66
Kitchen Brands -
Visited Kitchen Brands -
01 Nolte 02 Kitchen Decor 03 Radiance Kitchens
Tanmayee Palwe | Indian Kitchen | MIT Institute Of Design | 67
- They know about the currents trends
through net research.
- Before starting any new product they
dont conduct any net/user research.
- Marine ply with laminates for lower cost
Marine play with acrylic finish for higher
cost
Solid wood as per higher market demands.
- For countertop they provide - Corian/Italian
marble/ Granite
- Target customer - Lower to Higher market
- They know about the currents trends
(new / hardware/fittings) through net
research.
- Marine ply with laminate is used in
consideration with the usablity by
servants/ Maid.
- For countertop they provide - Corian/
Quatz/
Granite
- Target customer - Higher end market.
- They know about the currents trends
through exhibitions, board of
Interior designers & Architects.
- Marine ply with german acrylax
Only 5% of solid wood is used.
- Target customer - Higher middle as well
as upper market
Market analysis - “User’s Kitchen buying behaviour”
User segments
01 02 03
Lower Market Middle Market Higher Market
Middle Higher
Step 1 01 Functionality
02 Budget / cost factor
03 Aesthetics
Step 2
(Final
Selection)
01 Budget
02 Functionality
03 Aesthetics
Step 1
(Final
Buying)
01 Aesthetics / Finishes
02 Functionality
03 Budget
Tanmayee Palwe | Indian Kitchen | MIT Institute Of Design | 68
01
Tanmayee Palwe | Indian Kitchen | MIT Institute Of Design | 69
Mostly International brands in India uses fitting and accssesories of brands - Hettick, Blum, Hafale, Grass (for indian kitchens
where the requirements are quite different and sometimes use of such accssesories get failed)
02
High end market mostly goes for Solid wood wih different finishes than marine ply or MDF.
03
High end market goes for wooden accessories than the wire/metal accessories.
1.1 User research1.3
Tanmayee Palwe | Indian Kitchen | MIT Institute Of Design | 71
TARGETED USER MIDDLE ECONOMY USER
User questionnaire format :
USER RESEARCH – QUESTIONNAIRE
Objective:
To understand the User Perception about the modular kitchen and storage methods as well as needs/requirements in the kitchen
space.
User Profile:
Name: Age: Community:
Education: Family size: Working/housewife
Occupation: Height:
Location:
1) What do you know about the modular kitchen? what is your perception about the modular kitchens?
2) What comes in your mind about modular kitchen?
3) Why didn’t you set up the modular kitchen unit in your house? (In case of semi-modular and non-modular units)
A)Costly B)Space consuming C)Not needed D)Future planning E)Other reason
4) Who cooks the food? A)Self B)other member C)Maid
5)How many people cook at a time?
Space study:
Open or close kitchen? Layout of the kitchen: Total area of the kitchen:
No. of windows: (Window dimension – height, length, width)
Dado material: Dado height: How often you clean dado part?
Flooring material: Skirting Material: Skirting height:
Tanmayee Palwe | Indian Kitchen | MIT Institute Of Design | 72
Observations : Stuffs on countertop
1)Appliances 2)Utensils 3)General items:
Food habits:
What different types of food items you cook?
Breakfast: lunch: evening snacks: dinner:
Daily activities in the kitchen from making breakfast to dinner:
Activities: Sitting- Standing-
How much space is required for sitting work?
Total time spends : Breakfast- Lunch- Dinner-
Festivals Food items: No. of peoples:(During festival time in kitchen):
Vegetarian / Non-vegetarian? If Non-vegetarian, how often they eat non-veg?
How much time they spend to cook the particular dish?(Daily cooking dishes – breakfast items, lunch, dinner)
Where you stand/sit or where you do the preparation? (Different food items, Aamras) (How Much space required doing a particular
activity/dish)
Priority for kitchen space in the house:
Placement of “devhara”: 1) Kitchen 2) Other room
No.of dustbins in kitchen space : Placement of dustbin:
Placement of dining table (Kitchen/Dining area/Living room) and where do they eat food?
Tanmayee Palwe | Indian Kitchen | MIT Institute Of Design | 73
Placement of: A) Water filter/matka/aqua guard? B) Pickles/chutneys/sauf’ C) Utensils after wash for drying purpose:
D) Cooked food: E) festive made items (e.g. Diwali food items):
Hob type: 2 / 3 / 4 / 5 burners Source of ventilation: Chimney / Exhaust fan / Window
Have storage methods of daily needed items been in reach or not? (Work triangle)
Whether the storage is enough or not?
Sink type: Single/ Double/ Triple bowl. What are their requirements about the sink?
Any problem they are facing with the current sink.
Where do you clean the utensils? Counter top sink / dry balcony
Where do you keep the soap case and the otta cleaner and how?
Counter top: Material
Dimension: Width - Height- Thickness-
Storage methods:
Do you have a storeroom? If yes, what do you store there?
Storage material: A)Wooden racks B)SS racks C)Plastic baskets D)Other
Storage type: A)Wall hanging B)Floor C)Under countertop D)On countertop E)Other
Are you using separate utensils to cook non-veg food? Where do you store these utensils?
Tanmayee Palwe | Indian Kitchen | MIT Institute Of Design | 74
FOOD ITEMS BUYING BEHAVIOUR QUANTITY STORAGE METHOD(CONTAINER)
SHAPE OF
CONTAINER
CONTAINER
SIZE
STORAGE
SIZE(lxbxh)
EXTRA
STORAGE(SHAPE,
CONTAINER,SIZE)
Daily Weekly Monthly Yearly SS Tupperware Glass Other(Gunnybag/kothi) Oval Rectangular
GRAINS
Wheat
Rice
Jowar
Bajri
PULSES
Moong
Tur
Harbhara
Urad
Chana
Rajma
Matki
Vaal
Masoor
Chole
Chawli
DRY FOOD
Buiscuits
Khakra
Dryfruits
dry raw
food/snacks
GENERAL
Sugar
Salt
Tea powder
Coffee
Bournvita
Poha
Oil
Sago
Jaggery
Rava
Maida
Extra spices
Peanuts
Tamarind
Kokum
Onions
Potato
Garlic
coconuts
Food items storage methods:
Tanmayee Palwe | Indian Kitchen | MIT Institute Of Design | 75
Utensils storage methods:
UTENSILS
DAILY -
USED
OCCASIONALY -
USED
QUANTITY
EXTRA
SETS
SIZE
SPACE
REQD.FOR
STORAGE
PHOTOS
Glass SS
Glass
Spoons Cooking
Zara
Rice server
Ladle (For Dal,curry)
Palta'(For Omlet)
Serving
Pans SS/Aluminium/Iron
Non-s ck
Pots SS
Stackable(ss body, copper bo om)
Kadhai Iron
Non-s ck
Bowls Glass
SS
Plates Plates (large)
Plates (small)
General Lids (For pots and pans)
Parat'
Polpat + Belan
Pressure cooker
Chimta
Ravi (For dal,bu ermilk)
Sandashi/Pakkad
Measuring spoons
Ballon whisk(To whip up curd/egg)
Casserole
Lemon squeezer (Plas c/metal)
Masher
Khalba a
Hand grater/slicer
knives
Spice box
Icecream scooper
Tin opener
Peeler
Tray
Strainer Diff.types/size of plas c/metal
Si er with diff.sieves(For
grains/flour)
Ghee container (Lo )
Oil container
Crockery
Cup and saucers
Idli steamer
Puranpoli maker'
Modak maker'
Dhokla steamer
add on
Extra utensils
UTENSILS
DAILY
USED
OCCASIONALY
USED
QUANTITY
EXTRA
SETS
SIZE
SPACE
REQD.FOR
STORAGE
PHOTOS
Tanmayee Palwe | Indian Kitchen | MIT Institute Of Design | 76
Appliances storage methods:
APPLIANCES PLACEMENT
SPACE
REQD.FOR
STORAGE
NO. OF
ATTACHMENTS
STORAGE
METHOD
SPACE
REQD.FOR
STORAGE
PHOTOS
Refrigerator
Microwave (Utensils)
Mixer(A achments)
Dishwasher
Toaster
Juicer
Food Processor
Hot plate (Utensils)
add on
General items storage methods:
STUFFS IN KITCHEN
SPACE
PLACEMENT PHOTOS
Apron
Alluminium foil
Tissue Paper
Lighter
Napkin
Gas cylinder
Gas Pipeline
Glass stand
Utensils drying stand
Fruit basket
scissors
Broom
Tanmayee Palwe | Indian Kitchen | MIT Institute Of Design | 77
Modular Semi Modular Non Modular
- Modular kitchen is a set of
modules which can easily fix,
allows dismantle the whole
kitchen and it to a new space and
fix it all over again.
- The kitchen includes Kitchen
cabinets, Kitchen Appliances,
cooking range, Kitchen chimneys,
Kitchen Countertops.
Semi Modular kitchen is where Platform is already
made out of Marble with Granite Counter-top by
the civil professionals and one can add trollys and
shutters below the existing provided countertops of
granite which cannot be easily move to next place and fix.
Non Modular kitchen is where
countertop is already made out of
stone like granite without shutters
and cabinets and one can dump
the utensils and conatainers openly.
Tanmayee Palwe | Indian Kitchen | MIT Institute Of Design | 78
7
5
8
20 Houses
Food Utensils Crockery Appliances Miscellaneous
- Frequently / daily needed
food containers storage
- Dry food / Snacks storage
- Extra food storage
- Daily used / occasionally
used utensils
- Cylinder
- Sink cabinet
- Duster/apron/napkins
handlgloves storage
- Polythene/garbage
bags
- Dustbin
- Scissors
- Utensils drying stand
- Applinaces
attachments
- Microwave
- Oven
- Fridge
- Hand mixer
- Food processor
- Juicer
- Daily used / extra
Cup & sauscer
01 02 03 04 05
Tanmayee Palwe | Indian Kitchen | MIT Institute Of Design | 79
01
Aarti Dabir
Bavdhan
“ User friendly & Organised Kitchen”Modular Kitchen perception :
User Profile
Age - 46 | Height - 5'
Working 9 - 6
Cooking person - self | maid
2 members
CT height - 700mm(100 skirting)
CT width - 600mm
Space study
Modular Kitchen
Type - Gallery
168 sq.ft
Total volume of cabinet = 2.1 m3
0.67
m3
0.82 m3
0.19
m30.15
m3
0.27
m3
food utensils crockery
appliances miscellaneous
Food Utensils Crockery Appliances Misc.
32 % 39% 13% 7 % 9%
Tanmayee Palwe | Indian Kitchen | MIT Institute Of Design | 80
She Is working and leaves home by 9 -9:30 in morning by finishing
household work in 1- 1.1/2 hours with the help of her maid. It is not
easy for her to look after evrything daily. Her maid everyday cleans
DADO part of the kitchen wall. In her kitchen she has got sufficient
space for cooking and related activities on the countertop. She is
happy with the current storage space and likes to be everything
clean on the countertop immedietly after cooking.She buys everyday
needed food items monthly.
Dry countertop
Appliances -
Mixer
Microwave
Wet countertop
Freqently needed food
items -
Sugar
Tea Powder
Coffee Powder
Salt
Ghee container
Oil container
Serving spoons No storage to keep -
Parat’
Polpat + belan
Lids of cooker
Dry balcony storageStuffs on countertop
Tanmayee Palwe | Indian Kitchen | MIT Institute Of Design | 81
02
User Profile
Age - 40 | Height - 5'3”
Doctor
Cooking person - self
4 members (Husband-wife &
2 childrens)
Vaishali
Deshmukh
Magarpatta city
“ Organised solution for kitchen with hightech appliances ”
CT height - 700mm(150 skirting)
CT width - 560mm
Space study
Type - Island
400 sq.ft
Modular Kitchen
Food Utensils Crockery Appliances Misc.
Total volume of cabinet = 4.53 m3
39 % 25 % 0% 5 % 21%
Tanmayee Palwe | Indian Kitchen | MIT Institute Of Design | 82
She is a doctor and has flexible working hours. She has a very
large space for kitchen and have enough storage area.She
cooks food by herself and has maid only for cleaning purposes.
She does’nt like to keep freqently required food and utensils like
tea/sugar/oil containers and cooking spoons inside the cabinets.
She buys everyday needed food items montly and takes wheat and
rice once in a year and stores it in the drybalcony. She does all the
activities in standing posture.
1.77
m3
1.12 m3
0.23
m3
0.94
m3
Vaishali Deshmukh
Stuffs on countertop
Dry countertop Dry countertop Wet countertop
Appliances -
Microwave
Cup & saucers standFreqently needed food
items -
Sugar
Tea Powder
Coffee Powder
Salt
Ghee container
Oil container
Cooking spoons Sink Area -
Cutting Board
Tray
Tanmayee Palwe | Indian Kitchen | MIT Institute Of Design | 83
Observation + Problems
storage problems
No proper storage for keeping pans, so
it is difficult to remove the pan which is
at bottom.
No storage for polpat + belan’.
0201
- No proper placement of grater, casserole,
pots.
- Wastage of storage.
03
Tanmayee Palwe | Indian Kitchen | MIT Institute Of Design | 84
Observation + Problems
Observation + Problems
storage problems
No large storage for keeping cooking
spoons.
No stoarge for tray and cutting board.
01 0204 05
- No place to keep the onions potatos &
garlic in the kitchen.
06
Tanmayee Palwe | Indian Kitchen | MIT Institute Of Design | 85
03 User Profile
Age - 40 | Height - 5'3”
Doctor
Cooking person - self
4 members (Husband-wife &
2 childrens)
Rupali
Telvekar
Baner
“ Everything is within in a reach ”Modular Kitchen perception :
Type - L type
CT height - 700mm(150 skirting)
CT width - 560mm
Space study
110 sq.ft
Modular Kitchen
Food Utensils Crockery Appliances Misc.
Total volume of cabinet = 2.57 m3
56 % 29 % 4% 0 % 12%
Tanmayee Palwe | Indian Kitchen | MIT Institute Of Design | 86
She is a homemaker and prepares breakfast and lunch altogether
in 1.1/2 - 2 hours. She buys daily needed food items once in a 6
months and takes wheat, rice yearly. She has got quite large spaces
to store the extra food items. In her kitchen there is enough space
for cooking and related activities on countertop.
1.43
m3
0.74
m3
0.09
m3
0.32 m3
Rupali Telvekar
Dry countertop
Utensils -
Water Containers
Polpat’
Appliances -
Mixer
Stuffs on countertop
Tanmayee Palwe | Indian Kitchen | MIT Institute Of Design | 87
Observation + Problems
There might have the chances of falling down the utensils
which is at the top while taking utensils at the bottom.
No Storage for Polpat’.
Storage problems
01 02
Tanmayee Palwe | Indian Kitchen | MIT Institute Of Design | 88
Observation + Problems
general problemsstorage problems
No dustbin has kept inside the cabinet-
- According to this user, it is difficult to access / handle
the dustbin with dirty hands.
No Proper place to keep to keep the napkins.
03 04
Tanmayee Palwe | Indian Kitchen | MIT Institute Of Design | 89
04
User Profile
Age - 35 | Height - 5'3”
Homemaker
Cooking person - Self & Mother-in-law
4 members (Husband-wife, 1 daughter,
Grand Parents)
Pradnya
Deshmukh
Kothrud
“ Things are easily accessible & are arranged in defined order ”
Type - L type
CT height - 830mm(100 skirting)
CT width - 660mm
Space study
120 sq.ft
Modular Kitchen
Food Utensils Crockery Appliances Misc.
0.75
m3
0.68 m3
0.16
m3
0.44
m3
Total volume of cabinet = 2.08 m3
36 % 33 % 8 % 0 % 21 %
Tanmayee Palwe | Indian Kitchen | MIT Institute Of Design | 90
Wet countertop
Appliances -
Mixer
Freqently needed food
items -
Sugar
Tea Powder
Coffee Powder
Salt
Ghee container / Oil container
Sink Area -
Water Containers
Utensils Cleaning materials
Dry countertop
Appliances -
Microwave
Utensils -
Cooked food
Spoon stand
General -
Fruit Basket
Crockery -
Cup & sauscers
stand
Stuffs on countertop
Tanmayee Palwe | Indian Kitchen | MIT Institute Of Design | 91
Placement of soap case & other cleaning materials -
- According to this user, soap is required throughout the
day for cleaning cup and saucers and other deligate
utensils, so it is difficult to take everytime out of the
cabinets.
Placement of duster -
- After cleaning the countertop, she usually keeps the
duster on the sides of the countertop in open to
dry quickly.
No Proper place to keep napkins.
- This user required napkins in front of her while
cooking to wipe out the hands quickly.
01 02
general problems
Observation + Problems
Tanmayee Palwe | Indian Kitchen | MIT Institute Of Design | 92
Observation + Problems
No Proper placement for parat and pans’ No Proper storage to keep Polpat’, Pans and
kadhai’s
Corner Palce is used to dump
miscellaneous things -
- Difficult to clean the inner
space and floor because of
so many things placed
on the floor.
storage problems
04 0503
Tanmayee Palwe | Indian Kitchen | MIT Institute Of Design | 93
05
User Profile
Age - 45 | Height - 5'3”
Working
Cooking person - self
4 members (Husband-wife &
2 childrens)
Sushma
Khopkar
Kothrud
“ Everything gets hide behind the cabinets”
CT height - 700mm
CT width - 650mm
Space study
Semi Modular Kitchen
Food Utensils Crockery Appliances Misc.
35 % 40 % 8 % 0 % 15 %
Type - L type
100 sq.ft
Total volume of cabinet = 2.25 m3
Tanmayee Palwe | Indian Kitchen | MIT Institute Of Design | 94
0.77 m3
0.90 m3
0.18m3
0.33 m3
Sushma Khopkar
Stuffs on countertop
Wet countertop
Freqently needed food items -
Sugar
Tea Powder
Coffee Powder
Salt
Ghee container
Oil container
Appliances -
Mixer
Utensils -
Cooked food
Sink Area -
Utensils Cleaning materials
Dry countertop
Appliances -
Microwave
General -
Fruit Basket
Tanmayee Palwe | Indian Kitchen | MIT Institute Of Design | 95
Observation + Problems
Soap case, other cleaning materials & dustbin has kept outside the cabinet though there is a seperate cabinet
for those. That cabinet are use for keeping big utensils - cooker, parat’ as there is no large cabinet.
General problems
01 02
Tanmayee Palwe | Indian Kitchen | MIT Institute Of Design | 96
No proper storage for pans, polpat’, parat’.
Storage problems
Corner Palce is used to dump miscellaneous
things -
- Difficult to clean the inner space and floor
because of so many things placed on the floor.
03 04
Observation + Problems
Tanmayee Palwe | Indian Kitchen | MIT Institute Of Design | 97
06
User Profile
Age - 43 | Height - 5'3”
Homemaker
Cooking person - self
4 members (Husband-wife, Son &
Grandmother)
Meenal
Ghorpade
Baner
“ Easy accessible & organised storage ”
CT height - 780mm
CT width - 600mm
Type - L type
Space study
Semi Modular Kitchen
100 sq.ft
Food Utensils Crockery Appliances Misc.
31 % 27 % 11 % 0 % 26 %
Total volume of cabinet = 1.79 m3
Tanmayee Palwe | Indian Kitchen | MIT Institute Of Design | 98
0.55 m3
0.47m3
0.19m3
0.45m3
Meenal Ghorpade
Stuffs on countertop
Wet countertop
Sink Area -
Water container
Utensils cleaning materials
Cutting trayAppliances -
Microwave
Containers -
Cooked Food
Frequently needed food items -
Oil Container
Tanmayee Palwe | Indian Kitchen | MIT Institute Of Design | 99
Observation + Problems
Storage problems
No proper placement for pans and polpat’+ belan’. No storage for cutting board.
01 02
Tanmayee Palwe | Indian Kitchen | MIT Institute Of Design | 100
Observation + Problems
General problems
Placement of dustbin outside the cabinet though
there is seperate storage inside the cabinet.
Placement of soap case & other cleaning materials
on countertop.
03 04
Tanmayee Palwe | Indian Kitchen | MIT Institute Of Design | 101
07
User Profile
Age - 55 | Height - 5'
Homemaker
Cooking person - self
3 members (Husband-wife &
Grandmother
Vrushali
Railkar
Baner
“ Cabinet system for easy storing of utensils ”
CT height - 800mm
CT width - 650mm
Type - L type
Space study
Semi Modular Kitchen
100 sq.ft Food Utensils Crockery Appliances Misc.
35 % 20 % 6 % 4 % 33 %
Total volume of cabinet = 2.28 m3
Tanmayee Palwe | Indian Kitchen | MIT Institute Of Design | 102
She is a homemaker. She prepares breakfast and tiffin in the
morning and makes lunch during luch time. Because of her
placement of cooking range on small side of countertop she does’nt
get enough space for cooking. She has additional stainless steel
rack for keeping utensils as there is no space for big uensils in the
cabinets provided. She buys daily needed food items once in year
and stored it inside the bed storage.
0.80 m3
0.44 m3
0.14
0.08
0.74m3
Vrushali Railkar
Storage problems
01 02
- Placement of cleaning materials on
window seal, though there is
seperate storage under cabinet.
03
- Additional storage is required for
keeping utensils,containers because
of size limitations of the cabinets.
01
- No storage for veli’ ,Polpat’,pans
inside the cabinet.
- Width of countertop is very less to
work upon.
- No proper placement for pans
Observation + Problems
Tanmayee Palwe | Indian Kitchen | MIT Institute Of Design | 103
08
User Profile
Age - 43 | Height - 5'
Homemaker
Cooking person - self
3 members (Husband-wife &
Daughter
Devyani
Paul
Bavdhan
“ Knows about IsIand kitchen and coffee/breakfast table”
Type - L type
CT height - 830mm
CT width - 680mm
Space study
Semi Modular Kitchen
88 sq.ft Food Utensils Crockery Appliances Misc.
21 % 42 % 2 % 4 % 31 %
Total volume of cabinet = 2.29 m3
She is a homemaker. In morning while making breakfast she
prepares tiffing and lunch simultaneuolsy in 1-1/2 hours. while
cooking she does’nt do any other household activity. She requires
large space on counter top as she is not happy with the depth of
countertop.She does’nt believe in vastushastra. She Buys daily
needed grocery montly. She does’nt do any sitting work while
cooking, everything is done on the countertop
Tanmayee Palwe | Indian Kitchen | MIT Institute Of Design | 104
0.47 m3
0.97 m3
0.08
0.70 m3
0.42
Devyani Paul
Tanmayee Palwe | Indian Kitchen | MIT Institute Of Design | 105
Stuffs on countertop
Sink Area -
Utensils drying stand
Utensils Cleaning materials on window seal
wet countertop
Freqently needed food items -
Sugar
Tea Powder
Coffee Powder
Salt
Ghee container
Oil container
Utensils -
Cutting board
Glass stand
General -
Dustbin
Observation + Problems
Difficult to access oven because of
the placement of napkins.
Storage problems
030201
- No Proper place to keep the duster.
- Placement of cleaning materials on
window seal, though there is seperate
storage under cabinet.
Cutting board has been kept in open
space on the countertop -
- “According to this user, cuttin board is
required many times in a day so it
should be in open space than cabinets
for easy
handling.”
Small dustbin on the countertop -
- “It is very easy to throw wet garbage
immedietly than in dustbin inside the
cabinet.”
Tanmayee Palwe | Indian Kitchen | MIT Institute Of Design | 106
Research analysis04
Targeted
User
Market
Install Kitchen units only once for a lifetime.
Unaware about the importance of ergonomics in kitchen
space.
01
02
Unaware about the importance of worktriangle accroding to
activities and workflows to minimise working time in rush hours.
03
Tanmayee Palwe | Indian Kitchen | MIT Institute Of Design | 108
Users reality about kitchen spaces -
Why most of “Targated User Market” gœs for “Semimodular” or carpentary
made why not “Modular?”
01 02 03
Most of user are unaware about the
brands.
If knows about the brands then
it is very costly to install in kitchen
space.
Only Cabinets and trollys -
“means MODULAR KITCHEN”
Tanmayee Palwe | Indian Kitchen | MIT Institute Of Design | 109
In today’s construction limited
space is provided for prepararion and
cooking which is a primary
need.
Though cabinets are installed but
many required things and utensils
remain outside the cabinets as
there is no enough space in cabinets.
No proper zoning of components
of kitchen - Cooking area,
Washing area and Storage in
kitchen space according to
Indian activities and workflows.
01 02 03
Tanmayee Palwe | Indian Kitchen | MIT Institute Of Design | 110
Current scenario about kitchen units and spaces -
Modular
Kitchen
Semi
Modular
Kitchen
Non
Modular
Kitchen
More emphasis is given on finishes,
aesthetic value,hardware fittings,
accecssories and less on the size of
cabinets suitable for Indian large
utensils & other storage requirements
according to indian needs and
requirements as well as space for
cooking and preparation which is a
primary need of kitchen space.
No proper sequence and organisation
of utensils and containers according
to workflow and activities because of
limitaion of cabinet sizes.
No standards are set to make
a cabinet in kitchen space.
They are made according to the availability of
empty spaces available in kitchen.
Many of the utensils and food containers
remain outside the cabinet bacause
of no space planning and cabinet size
constraints and requires additional racks/
storage methods to store, which doesn’t
suit with the kitchen unit.
Utensils & containers are
visible in kitchen space.
Tanmayee Palwe | Indian Kitchen | MIT Institute Of Design | 111
facts about kitchen units -
Ideal
Indian
Kitchen
01 Ergonomically convenient - 1) In terms Height /
Width of countertop.
2) Efficient Space for
primary as well
secondary needs of
kitchen space.
03 Zoning for storage methods for smooth working in
kitchen. (In consideration with the available kitchen
layouts.)
02 Appropriate Storage methods for Indian requirements
(Kind of Utensils, daily food requiremets and buying
behaviour)
Cooking plays a very important role in every Indian house.
Before cooking , primary activities like the following need
to be done which are very time consuming -
Cutting
Chopping
Washing
Making dough
If there is no proper sapce to do these primary activities
then there is no sussccesful implimentation of this product.
To design a kitchen which should be -
Tanmayee Palwe | Indian Kitchen | MIT Institute Of Design | 112
1.11.1 Refined design brief :
Ideal
Indian
Kitchen
For Designing
requires study of -
a) User activities in kitchen
From making breakfast to
dinner.
space.
a) User food Buying behaviour
b) Everday food requirements.
a) Daily Utensils requirements
01 02 03 04
Tanmayee Palwe | Indian Kitchen | MIT Institute Of Design | 113
Working as well as most of the non working women do many activities simultaneously to make breakfast &
lunch together.
15-20 mins
Making Tea/coffee/milk
Serving Cleanining house Washing Utensils
Preparartion for breakfast
-Cutting
-Washing
-Cooking
-Microwave
-Serving
Preparartion for vegetable
-cutting
-washingPrimary activities
Side activities
Breakfast
Tanmayee Palwe | Indian Kitchen | MIT Institute Of Design | 114
Activities in kitchen space - (Morning time)
30-45 mins
Washing clothes (washing machine) Devpooja’
- Making dough
- Washing rice & pulses
-Vegetable Cooking
-Making Rotis
Fiiling tiffins
Lunch
Tanmayee Palwe | Indian Kitchen | MIT Institute Of Design | 115
Evening
snacks
Dinner
Food preaparation - Cutting
Washing
- Making dough
- Making Rotis
- Vegetable Cooking
- Washing rice & pulses
ServingEntertainment activities - Watching tv
Chatting
Cleaning
Activities in kitchen space - (Evening time)
Tanmayee Palwe | Indian Kitchen | MIT Institute Of Design | 116
Breakfast Lunch Evening
snacks
Dinner
- Daily
- Festivals /
Special occasions.
Cooking in morning time | Rush Hours Cooking in evening time | Ralaxing Hours
- Performs many activities simultaniously.
- Requires more energy for accomplish every task.
- For working women as well as non working women
who has to make tiffins and breakfast, they have to
finish all the activities in a less time.
- Main focuss is only on cooking, so cooking activities
are same but less energy is required as compared to
morning activities.
- There is no time pressure while doing activies.
Tanmayee Palwe | Indian Kitchen | MIT Institute Of Design | 117--
Time consuming cooking activities in kitchen -
01 02 03
01 Atta container
02 Oil
03 Salt
03 Water
04 Pot
01 Pan
02 Polpat + Belan
03 Casserole
04 Oil
05 Atta Container
06 Wooden shaker
01 Chopping board / Veli / Knife
02 Plate / Pot
03 Water
Kneading dough Making Roti Chopping Vegetables
Tanmayee Palwe | Indian Kitchen | MIT Institute Of Design | 118
- These 4 are most time consuming activties as compared to others while cooking
and it requires quite large space.
- For every activity force required is different.
04
01 Cleaners
02 Utesils drying stand
Washing Utensils
Tanmayee Palwe | Indian Kitchen | MIT Institute Of Design | 119
REPETATIVE ACTIONS + FORCE + MORE TIME IS REQUIRED01
01 Atta container
02 Oil
03 Salt
03 Water
04 Pot
Kneading dough - Twice in a day
5 -7 MINS
Shoulder pain + stress on elbow point Relaxing posture for work
Countertop height - Too high or above the elbow height = Awkward Shoulder Posture
Too low = Awkward back posture
The height of the countertop should be 10-25 cms below the elbow height for easy
working.
Tanmayee Palwe | Indian Kitchen | MIT Institute Of Design | 120
Indian Women Height observed during reseach - 5’ - 5’3”
1504 mm
950 mm Elbow height from ground level
Ideal height of contetop for kneading (Indian User)
800 - 850mm
Tanmayee Palwe | Indian Kitchen | MIT Institute Of Design | 121
02
01 Pan
02 Polpat + Belan
03 Casserole
04 Oil
05 Atta Container
06 Wooden shaker
Making Roti - Twice in a day
This includes 2 tasks simultaneously - Making roti
Shaking
No space is remain for easy movements
for roti making.
In Front of cooking range
Easy shaking at right hand side for
right handed person.
Difficult to shake the roti by left hand
for right handed person.
At Left side of cooking range At Right side of cooking range
Placements of required stuff for
roti making activity.
SIMILAR ACTIVITIES - Making puranpoli
Puri
Similar festival food
which requires large space on countertop
and it is a time consuming process.
Tanmayee Palwe | Indian Kitchen | MIT Institute Of Design | 122
For this activity, space is required for keeping polpat, casserole,oil and atta container.
Body Posture while making Roti
Tanmayee Palwe | Indian Kitchen | MIT Institute Of Design | 123
440 mm
(elbow to elbow distance in max. relax posture)
There shoulld be a free cleareanceof 100-150 mm
at both elbow sides.
So,at left side of cooking range min.650 -700 mm
space should be available for easy working
Tanmayee Palwe | Indian Kitchen | MIT Institute Of Design | 124
Free space for easy working to carried out
various cooking activities.
650 - 700 mm
03
01 Chopping board / Veli / Knife
02 Plate / Pot
03 Water
Chopping Vegetables - 4-5 times in a day
REPETATIVE ACTIONS + MORE TIME IS REQUIRED + LESS FORCE
(compared to
kneading and washing)
Tanmayee Palwe | Indian Kitchen | MIT Institute Of Design | 125
It should be carried out at left side or right side of the sink area, depending on the
space availibilty.
04
01 Cleaners
02 Utesils drying stand
Washing Utensils - Many times in a day
Tanmayee Palwe | Indian Kitchen | MIT Institute Of Design | 126
REPETATIVE ACTIONS + FORCE + MORE TIME IS REQUIRED
Workflow of cooking activities -(Based on daily required food habits)
Generally In indian kitchen following sequence of cooking activities takes place.
Making
dough
Washing
rice
& pulses
Cooking
rice
Chopping
vegetables
Cooking
vegetables
Making
Roti
Cleaning
Tanmayee Palwe | Indian Kitchen | MIT Institute Of Design | 127
2
80
80
80
80
80
180
110
120
112
168
270
80
96
168
400
112
120
140
100
3 4 5 6Visited 20 families of members -
Area of kitchen in sq.ft -
Daily food storage requirement for family of 3/4/5 are quite similar.
Min Kitchen area - 80 sq.ft - Max. Kitchen area - 180 sq.ft | 400 sq.ft
Tanmayee Palwe | Indian Kitchen | MIT Institute Of Design | 128
Daily required food for 2 meals and breakfast -
Food Buying behaviour for family of 3/4/5 members
Yearly Monthly
Wheat atta
Rice
Pulses
Oil
Poha
Sugar
Spices
Bajra, Jowar - as per requirement
Tanmayee Palwe | Indian Kitchen | MIT Institute Of Design | 129
3 families
12 families
Buying behaviour
Monthly required food quantity for 3 members -
3 kg 5 kg 8 kg 2-3 kg 5 kg 8-10 kg 250 gms 500 gms
Tanmayee Palwe | Indian Kitchen | MIT Institute Of Design | 130
PulsesRiceWheat
Monthly required food quantity for 4 members -
3 kg 5 kg 8-10 kg 2-3 kg 5 kg 8-10 kg 250 gms 500 gms
Tanmayee Palwe | Indian Kitchen | MIT Institute Of Design | 131
PulsesRiceWheat
Monthly required food quantity for 5 members -
3 kg 5 kg 8-10 kg 2-3 kg 5 kg 8-10 kg 250 gms 500 gms
Tanmayee Palwe | Indian Kitchen | MIT Institute Of Design | 132
Wheat Rice Pulses
Monthly required maximum food quantity for 3/4/5 members
Tanmayee Palwe | Indian Kitchen | MIT Institute Of Design | 133
Stainless steel Aluminium Tupperware/Plastic
Container material used for storing Wheat / Rice
Container material used for storing Pulses Container form used for storing Pulses
Container form used for storing Wheat / Rice
Oval Rectangular
Stainless steel Aluminium Tupperware/Plastic Oval Rectangular
Tanmayee Palwe | Indian Kitchen | MIT Institute Of Design | 134
For 8 -10 kgs
Min dia - 8.1/2’’ , 9.1/2” Height - 11’’, 12’’
Max dia - 11”, 11.1/2” Height - 11” ,12”
For 5 -7 kgs
Min dia - 6.1/2” , 7.1/2”, Height - 8“, 9’’
Max dia - 8” Height - 8” , 9”
For 500 gms
Dia - 3’’, Height - 5”, 6.1/2“,
For 1-2 kgs
Dia - 4” , 5” Height - 7.1/2“,8”
Container sizes for Pulses (Oval form)
After wheat and rice containers, large containers are required for storing Poha, Sugar and oil which are required in a large
quantities for the complete month, so the same sizes of containers as above used for 5-7 kgs storage.
Container sizes for wheat and rice (Oval form - Research data)
Tanmayee Palwe | Indian Kitchen | MIT Institute Of Design | 135
Tanmayee Palwe | Indian Kitchen | MIT Institute Of Design | 136
Daily utensil requirements - (Based on activities)
Cooking
- Pans (Different sizes) : 3-4
- Pots (Different sizes)
- Cooker (Different sizes) : 1-2
- Kadhai :3-4
- Spoons
- Lids
Preparation
- Spoons
- Chopping board/veli
- Knives
- Pots
- Plates/parat
Serving
- Plates (Different sizes)
- Spoons
- Bowls (Different sizes)
- Glass/Fulpatra/Tambya
- Tray
- Cup & Saucers
General
- Khalbatta
- Supda(for cleaning
grains & peanuts)
- Sandashi/Pakkad
- Casserole
- Strainer
- Sifter with different
sieves
Occasional
- Idli steamer
- Modak maker
- Puranpoli yantra
Based on workflow of kitchen activities the access to the food is less as compared to utensils.
Utensils (requires many times in a
day for various precesses)Food (requires only 2-3 times in a day)
- Daily required food for 2 meals and breakfast - Wheat atta
Rice
Pulses
Oil
Poha
Sugar
Spices
One type of utensil is used for various cooking
activities.
Cooking Preparation Serving
Plate
Bowl
Spoons
Pots
- While cooking it requires only once during preparation
activity.
Tanmayee Palwe | Indian Kitchen | MIT Institute Of Design | 137
“We can not change” “We can change”
01 Indivisuals working habits.
02 Work / activities sequence.
03 Buying behaviour
04 Food requirements
05 Utensil requirements
06 Container size / form / material
07 Space availabilty
01 Classification of food containers and kind of utensils
based on activities.
02 Positioning of required kitchen stuffs according to
activity to reduce movements. (Storage zoning)
03 We can make ideal space available for kitchen activity
to perform it in less time and with less energy.
Tanmayee Palwe | Indian Kitchen | MIT Institute Of Design | 138
Insights -
Min. - 80 sq.ft Max.- 180 sq.ft
Observed areas specifictions -
Total volume of
kitchen cabinets -
Min. - 1.39 m3
Max. - 2.48 m4
2.28 m3
Kitchen area -
Volume of kitchen cabinets with minimum space area is quite similar with volume of maximum area indicating similar
requirements.
Highest volume of cabinet is 2.64 m3 for area of 128sq.ft.
Kitchen design / zoning should be for minimum area - 80 sq.ft
area
Volume can get easily fitted in higher areas -
100/120/150/180 sq.ft areas
Tanmayee Palwe | Indian Kitchen | MIT Institute Of Design | 139
for flat system (small area)
sink & hob in one direction
is not so much feasible
Utesils always should
be in RHS (for handy position)
Less space remain for
preparation Corner can be
used to keep
utensils stand.
Ideations -
Tanmayee Palwe | Indian Kitchen | MIT Institute Of Design | 140
Space for making
roti and other similar
activities.
Space for chopping/cutting
and other preparation.
Tanmayee Palwe | Indian Kitchen | MIT Institute Of Design | 141
Tanmayee Palwe | Indian Kitchen | MIT Institute Of Design | 142
Tanmayee Palwe | Indian Kitchen | MIT Institute Of Design | 143
Tanmayee Palwe | Indian Kitchen | MIT Institute Of Design | 144
Cabinet 1 (Daily required food storage) Cabinet 2 (Daily required utensils storage)
Pulses and
related food items
(container size
for 500 gms)
Spoons
(cooking &
serving)
Storage for
Wheat / Rice / poha / sugar / oil can Storage for
Pots / Kadhai / Cooker
Small pots
Basic storage categoration for primary needs - (with available kitchen grace maximum cabinet sizes)
Tanmayee Palwe | Indian Kitchen | MIT Institute Of Design | 145
Cabinet 3 (Daily required utensils storage)
Storage for
pans / parat
and similar utensils
Storage for
plates
(Small /large)
Cylinder cabinet
Tanmayee Palwe | Indian Kitchen | MIT Institute Of Design | 146
Required basic zoning for primary needs according to workflows of daily activities -
01 Access to food containers is only twice a day. So food storage should be under the cooking range, where
women stands maximum of time in front of range.
02 Stoarage for pots / kadhai / cooker and spoons should be next to the food storage at left hand side.
03 Storage of plates/ pans /parat and similar utensil should be near to sink area.
04 For smaller areas range and sink sould not be in one line or atleast there should be enough space to fit both for
smooth working on countertop.
05 There should be always small free space at right hand side of the sink to keep utensils stand.
Tanmayee Palwe | Indian Kitchen | MIT Institute Of Design | 147
( 8’ X 10’ )
10‘
8’
Tanmayee Palwe | Indian Kitchen | MIT Institute Of Design | 148
8‘
10‘
Tanmayee Palwe | Indian Kitchen | MIT Institute Of Design | 149
10‘8‘
10’
Tanmayee Palwe | Indian Kitchen | MIT Institute Of Design | 150
Design brief 202
Problem statement1.1
To list out the observed problems in kitchen space and find appropriate method to resolved one of them.
Tanmayee Palwe | Indian Kitchen | MIT Institute Of Design | 152
01
Observed Problems -
Tanmayee Palwe | Indian Kitchen | MIT Institute Of Design | 153
01) Pan storage are difficult to access (vertical stacking is not a proper solution for storing pans).
02) Difficult to use dustbin which is attached to door with dirty hands.
03) No proper lighting solution for kitchen area.
04) No space to keep/ store big utensils (typical Indian utensils - Parat/sup/Big pots).
05) No provision for ventillation to dustbin door.
06) Somewhere depth of countertop is very less.
07) Problems in accessing corner cabinets which are without magic corner &
other accessories.
08) No skirting or gap in the kitchen units provided by carpenters and local kitchen brands,
so difficult to access/use while working.
09) No proper storage to keep -
.
Cutting board
veli (Indian chopping board)
Polpat + belan
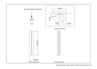
Onions/Potatos/Garlic (Which are frequently needed)
Broom
Tanmayee Palwe | Indian Kitchen | MIT Institute Of Design | 154
01
Pan Storage Problem
It is very difficult to take a pan which is at bottom in horizontal stacking.
01
Majorly observed area -
Tanmayee Palwe | Indian Kitchen | MIT Institute Of Design | 155
No Proper storage or accessory for pans
02
Pan handles get stuck in to the wire mesh which is difficult to remove as a result there is no space for keeping
other plates at the handle side.02
Tanmayee Palwe | Indian Kitchen | MIT Institute Of Design | 156
Lid Storage Problem
01) Lids should always be kept with the Pans for easy accessing.
02) With the rectangular profile wire baskets, lid nobs get stuck in to it and difficult to remove whenever
requires.
Tanmayee Palwe | Indian Kitchen | MIT Institute Of Design | 157
Parat Storage Problem
Tanmayee Palwe | Indian Kitchen | MIT Institute Of Design | 158
Tanmayee Palwe | Indian Kitchen | MIT Institute Of Design | 159
There is no as such accssory
available for pans storage
where we can get easy access to
pan.
Though wire baskets with adjustment
member are available but not to be
a good solution to store pans with
handles.
Higher end market mostly goes for
wooden accessories than wire basktes.
01 02 03
Current scenario about storage -
Tanmayee Palwe | Indian Kitchen | MIT Institute Of Design | 160
Pans always should be stored vertically
for easy accessing.
Pan handle should be in raised
position which is easy to access
rather than bottom position.
01 02
Key Insights -
Tanmayee Palwe | Indian Kitchen | MIT Institute Of Design | 161
Storage should be adjustable to
occupy all sizes of pans and parat.
03
Tanmayee Palwe | Indian Kitchen | MIT Institute Of Design | 162
Refined brief1.2
To design as accessory which serves the purpose for storing pans/lids/parat and other similar utensils with
different sizes.
Min - 25cm ,26.5cm, 31cm, 33cm, 35.5cm, 38cm 40cm, Max - 42.5cm
6 - 8 cm deep
Parat specification
SS Parat Aluminium Parat Brass Parat
Tanmayee Palwe | Indian Kitchen | MIT Institute Of Design | 163
Pan specification
Pan dia - Min - 25cm ,26.5cm, 31cm, 33cm,
35.5cm, 38cm 40cm,
Max - 42.5cm
Total length - Min - 25cm ,26.5cm, 31cm, 33cm, 35.5cm,
38cm 40cm,
Max - 42.5cm
Pan depth - 5 - 7 cm
Total height - 8 - 10 cm
Tanmayee Palwe | Indian Kitchen | MIT Institute Of Design | 164
Lids specification
Upper dia - 40mm, 50mm
Lower dia - 56mm, 62mm
Height - 3 - 4 cm
Tanmayee Palwe | Indian Kitchen | MIT Institute Of Design | 165
INITIAL CONCEPTS
Wire frame structure
Difficult to take pan
which is at bottom
Difficult to
access
5 - 8 mm deep
Not adjustable for large
diameter and lenghts
Initial problem statement1.3
Tanmayee Palwe | Indian Kitchen | MIT Institute Of Design | 166
EXISTING SYSTEM FOR HORIZONTAL STACKING
Hafele base plate organiser
Pegs
Useful for horizontal
stacking
Wastage of space
Difficult to stack plates
vertically
Wooden dividers for
keeping pots
Round post
Triangular post
Short & long utensils
dividers
Can not take load
Tanmayee Palwe | Indian Kitchen | MIT Institute Of Design | 167
Creates negative
spaces
Difficult to stack pans & pots beween these
spaces
Tanmayee Palwe | Indian Kitchen | MIT Institute Of Design | 168
Tanmayee Palwe | Indian Kitchen | MIT Institute Of Design | 169
Tanmayee Palwe | Indian Kitchen | MIT Institute Of Design | 170
Module to keep - only pans/parat/lids
No space remain to keep this 4th
plank
Tanmayee Palwe | Indian Kitchen | MIT Institute Of Design | 171
Tanmayee Palwe | Indian Kitchen | MIT Institute Of Design | 172
Baseplate01
1st module
3rd module
2nd module
02
Tanmayee Palwe | Indian Kitchen | MIT Institute Of Design | 173
••••••••••••••••••
60 [1524]
••••••••••••••••••
Dovetail Joi
2nd module
Dovetail joint is given to hold 1st
and 3rd module very tightly.
Because of Dovetail joint,
easy sliding in upward
& downward direction,
without disturbing the side
spaces and modules.
01
02 03
Concept Development
Tanmayee Palwe | Indian Kitchen | MIT Institute Of Design | 174
Dovetail slot is given at the end side of each module to add extra
modules for supporting the utenisls if required.
04 05
The arrangement of this
structure is such a way that
the 3rd module can not fall
down because of the load
of utensils which stacked
vertically.
Along with the support
of dowels this 3rd module
can also get the support
of these 2 side modules.
Tanmayee Palwe | Indian Kitchen | MIT Institute Of Design | 175
This combined structure can also save the
space on the baseplate.
Existing modelRefined model
Within single hole 3 modules can get hold on baseplate
altogether.
Tanmayee Palwe | Indian Kitchen | MIT Institute Of Design | 176
06
This module is use as a ‘STOPPER’ for the
different sizes of pans and pots with handles.
Tanmayee Palwe | Indian Kitchen | MIT Institute Of Design | 177
This profile is used to hold the lid nobs.
Base part is used to rest the pan handles
in upward direction for easy handling.
07
08
Tanmayee Palwe | Indian Kitchen | MIT Institute Of Design | 178
Orthographic details
PLAN
10 mm thick
beech solid
wood base
plate
150[3810]
90[2286]
61 [1540]
dowels
vertical
supports
vertical
supports
FRONT ELEVATION SIDE ELEVATION
PLAN
610 [15484]
534[13564]
••••••••••••••••••
32[806]
10 mm thick
beech solid
wood
SIDE ELEVATIONFRONT ELEVATION
PLAN
10[254]
PLAN
FRONT ELEVATION SIDE ELEVATION
Tanmayee Palwe | Indian Kitchen | MIT Institute Of Design | 179
135 [3429]151[3826]
135[3429]
85[2159]
50 [1270]
8 [199]
8 mm dow
PLAN
FRONT ELEVATION
12 [305]
12 mm thick
beech solid wood
•••••••••••••••••
60 [1524]
••••••••••••••••••
135[3429]
Dovetail Joint
PLAN
12 [305]
12 mm thick
beech solid wood
PLAN
12 mm thick beech
solid wood
8 mm dowel
FRONT ELEVATION
Tanmayee Palwe | Indian Kitchen | MIT Institute Of Design | 180
PLAN
FRONT ELEVATION SIDE ELEVATION
150[3810]
25 [635]
25 mm thick beech solid wood
25 [635]
• • ••• • • • ••••••••••
6 [152]3 [76]
6[152]
BLOWN UP DETAIL
PLAN
FRONT ELEVATION SIDE ELEVATION
BLOWN UP DETAIL
Tanmayee Palwe | Indian Kitchen | MIT Institute Of Design | 181
Manufacturing process -
Tanmayee Palwe | Indian Kitchen | MIT Institute Of Design | 182
159]
Problems with model -
Here requires additional support/module in
between 2 pans / lids to prevent from falling after
opening/closing of drawer.
If we keep support in between two utensils it looks so crowdy and
confused system to store.
Tanmayee Palwe | Indian Kitchen | MIT Institute Of Design | 183
Tanmayee Palwe | Indian Kitchen | MIT Institute Of Design | 184
Refined concepts -
Tanmayee Palwe | Indian Kitchen | MIT Institute Of Design | 185
Tanmayee Palwe | Indian Kitchen | MIT Institute Of Design | 186
Tanmayee Palwe | Indian Kitchen | MIT Institute Of Design | 187
135 [3429]
151[3826]
50 [1270]
8 [199]
8 mm dowel
FRONT ELEVATION
Tanmayee Palwe | Indian Kitchen | MIT Institute Of Design | 188
Concept Development 1 -WIRE FRAME STRUCTURE
Profile 1
profile ends are provided with
movable and detachable clips
So the these modules can be adjusted according
to the length and depth of the utensils.
01
Used for holding lids nob
Act as a stopper for small
length utensils.
03
02
Tanmayee Palwe | Indian Kitchen | MIT Institute Of Design | 189
Profile 2
This profile is used for resting
pan handles in raised position
for easy accessing.
This depth is given,so that handle
get stuck and can not be moved.
Tanmayee Palwe | Indian Kitchen | MIT Institute Of Design | 190
Tanmayee Palwe | Indian Kitchen | MIT Institute Of Design | 191
Orthographic details 1
530
PROFILE 1
PROFILE 2
64
286
505
200
SS wire of 2.8 mm diameter
Tanmayee Palwe | Indian Kitchen | MIT Institute Of Design | 192
SS wire of 6 mm
diameter
PLAN
FRONT ELEVATION SIDE ELEVATION
Tanmayee Palwe | Indian Kitchen | MIT Institute Of Design | 193
PLAN
FRONT ELEVATION SIDE ELEVATION FRONT ELEVATION
64
286
150
64 125 125
50
50
286
200
16
50
35
476
PROFILE 1 DETAILS PROFILE 2 DETAILS
Tanmayee Palwe | Indian Kitchen | MIT Institute Of Design |194
Concept Development 2 -WOODEN BASEPLATE STRUCTURE
Same modules are used in wooden baseplate and can
be adjusted accordingto the depths and length of
utensils without using movable clips.
Module 1
Module 2
Orthographic details 1
PROFILE 1
16 MM SOLID WOOD
PROFILE 2
64
505
286
530
64
Tanmayee Palwe | Indian Kitchen | MIT Institute Of Design | 195
530 505
Tanmayee Palwe | Indian Kitchen | MIT Institute Of Design | 196
Manufacturing process -
Tanmayee Palwe | Indian Kitchen | MIT Institute Of Design | 197
Wire frame basket Wooden baseplate system

Indian Kitchen documentation

  • 1.
    Graduation Project 2014 IndianKitchen Sponsor Student Kitchen grace (India) Pvt. Ltd. Tanmayee Palwe Industrial Design (Interior Space & Equipment Design) Industry Guide Mr.Snehal Vasani Prof. Vasudha Karhadkar Faculty Guide MIT INSTITUTE OF DESIGN MAEER’s
  • 2.
    The Graduation ProjectEvaluation Jury recommends TANMAYEE PALWE to be awarded Graduation Degree of the MIT Institute of Design,Pune IN INDUSTRIAL DESIGN ( INTERIOR SPACE & EQUIPMENT DESIGN) herewith, for the project titled “INDIAN KITCHEN” MEMBERS : NAME ORGANISATION SIGNATURE GRADUATION PROJECT 2014 PG PROGRAMME Chairperson of the jury MIT INSTITUTE OF DESIGN MAEER’s
  • 3.
    I would liketo express my gratitude to all those who have helped me and supported me during my diploma project. I want to thank Kitchen Grace for giving me this opportunity to commence this project, to do the required research work and provide a complete learning experience. A special thanks to Mr.Snehal Vasani, Mr.Ranjit Ghorpade for their valuable time, guidance and feedback during my period of work with them.I would also like to thank the entire team at Kitchen Grace for supporting me in everystage of my project. My deepest thanks to our Head of the department, Prof. Vasudha Karhadkar for guiding me and gradually change my design thinking, to successfully come up with displayed design solutions. Furthermore, I would like to thank Prof. Rajan Iyer and Prof. Amit Deshmukh for always supporting me during my project. Last but not the least, I would deeply thank my family and friends and the entire MITID family for all their support and well wishes. Thank you. - Tanmayee Palwe PG ISED. Acknowledgement
  • 4.
    01 1.1 About KitchenGrace 07 1.2 Oraganisation structure 08 1.3 Materials 09 1.4 Manufacturing process 11 1.5 Painting process 15 1.6 Kitchen Specifications 22 1.1 Refined design brief 1 112 1.2 Activities study 114 1.3 Food requirement study 129 1.4 Utensils requirement study 136 1.5 Storage zoning 145 1.1 Background of given problem statement 24 1.2 Problem statement 25 1.3 Initial design brief 26 Introduction 02 Design Brief 1 1.1 Basic research about Kitchen 29 1.2 Market research 64 1.3 User research 71 Research 05 25 2703 Content Research Analysis04 Bibliography06 1.1 Problem statement 152 1.2 Refined brief 10 1.3 Concepts 166 Design Brief 205 Retrospection07 107 151 198 199
  • 5.
  • 6.
  • 7.
    Kitchen Grace importsparticle boards and key hardware fittings from Europe. Mr.Snehal Vasani He is an architect by profession. After graduating in 1970 from Sir J.J. College of Architecture, Mr.Vasani has had a plethora of practical work experience in Mumbai , and The National Institute of Design, A’bad in architectural, interior and exhibition design. itchen Grace is the first modular kitchen manufacturing company in India. Since 1988,a time when modular kitchen was not very familiar to the Indian Consumer, Kitchen Grace has specialized in the manufacture of modular kitchen furniture and cabinets. The company is headed by the Snehal Vasani. He has also worked in Bahrain for more than a decade in various linked industries ranging from construction, interior design to modular kitchens. Kitchen Grace has an excellent team of engineers and other professionals for high quality execution. Kitchen Grace has adapted European technology for Indian needs with imported machines for high quality and consistency. K Tanmayee Palwe | Indian Kitchen | MIT Institute Of Design | 07 1.1 About Kitchen Grace1.1
  • 8.
    KITCHEN GRACE Customer care department Checkfor design & dimension Planning & designing department Production department dispatcher 1] 2] Packout Order is received (Workorder / job card) Cutting plan Production measurement on site KG Designer takes the Dealer’s designer takes the measurement on site & send it to KG If the design is in other format then convert it in to the KCW format which KG follows. Quotation Info to customer care / Material dispatch Direct customer KG Dealer (Flat pack / assembly pack) 01 02 03 Tanmayee Palwe | Indian Kitchen | MIT Institute Of Design | 08 Organization structure1.2
  • 9.
    LAMINATE 8’ x 4’ ALUMINIUM FRAME 3m(l) x 45 mm(w) GLASS SOLID WOOD PARICLE BOARD BACKLITE 8’ x 4’ VENEER 8’ x 4’ MATERIAL SiZES MARINE PLY 8’ x 4’ MDF 8’ x 4’ - - 0.6 mm 1 mm 1.5 mm 20 mm 4 mm 6 mm 8 mm 18 mm BSL 2.7 mm BSL 1mm THICKNESS 6mm,8mm,12mm (Customised) 16 mm 17 mm 18 mm 18 mm BSL 17mm PLANE 16 mm 4mm,8mm,12mm (Customised) - Clear glass Clear glass Clear glass Extra clear glass Oak wood Steam beech Walnut wood Wallnut Zebrano White ash White oak TYPE - - - - - - - - Novapro drawer Glass shelf APPLICATION Drawer bottom - - - - - - Marine ply MDF + PB + solidwood (Customized) In kitchen grace, 90% of Marine ply is used for the manufacturing of kitchen units. - Water resistent - Does not swell - Termide resistant - Marine ply on one another. is made up of slices of wood of thickness not more than 0.5 mm are pasted - It is stonger than MDF & PB 01 90 %90 % 10 % Tanmayee Palwe | Indian Kitchen | MIT Institute Of Design | 09 Materilals1.3
  • 10.
    MDF - - It islighter than solid wood. - It can be drilled and routed. - It is available in 4, 8, 9, 12, 15,18, 25, 30 mm thicknesses. PARTICLE BOARD - Particle board is made of the chips or the waste of the trees & rice , wheat straws. - It is lighter material. - It can be drilled but can not be routed so easily. - It is available in 9, 12, 15, 18, 25 mm thicknesses. SOLID WOOD - Solid wood is very expensive than other type of materials. - In kitchen grace Teak wood, Ash wood,Oak wood, Wallnut wood are generally used for making kitchen units. MDF is Medium density fiber,is made of fine saw dust or fine wood fiber as its name suggest. Tanmayee Palwe | Indian Kitchen | MIT Institute Of Design | 10
  • 11.
    In this process,after applying the adhesive , a sheet of laminate is place or glued on the MDF / PB / PLY. This is the first process in making the kitchen. It is the process called LAMINATING, in which the adhesive is applied on the the sheet of MDF / PB / PLY. 01 02 Tanmayee Palwe | Indian Kitchen | MIT Institute Of Design |11 Manufacturing process1.4
  • 12.
    Then this sheetis kept under the HOT PRESS machine for the temperature of 80 to 100 degree celcius. 03 04 Tanmayee Palwe | Indian Kitchen | MIT Institute Of Design | 12
  • 13.
    After the hotpress is done, sheet gets cut into pieces according to the cutting plan. After cutting, the sides of the sheet get covered with the band of PVC or ABS to hide the exposed edegs of the sheet. This process is known as EDGE BANDING process. 05 06 Tanmayee Palwe | Indian Kitchen | MIT Institute Of Design | 13
  • 14.
    This is theHINGE BORING machine used for making the grooves in the wooden planks for the hinges application. This is the CNC MACHINE used for drilling as well as routing application. 07 08 Tanmayee Palwe | Indian Kitchen | MIT Institute Of Design |14
  • 15.
    Polyster coat Sanding Sanding Matt Gloss(PU paint) Surface Edge 1st coat Polyster coat 2nd coat Sanding Clear laquer Protective application Packing Tanmayee Palwe | Indian Kitchen | MIT Institute Of Design | 15 Painting process1.5
  • 16.
    This is thefirst process where the wooden plank is coated with the polyster in manual paint booth. After the first and second polyster coat,the SANDING is done on the top surface of the wooden plank. 01 02 Tanmayee Palwe | Indian Kitchen | MIT Institute Of Design |16
  • 17.
    This SANDING MACHINEis used to sand the edge of the wooden plank after the first and second coat of the polyster. This process is called as EDGE SANDING. . 03 04 Tanmayee Palwe | Indian Kitchen | MIT Institute Of Design | 17
  • 18.
    Before applying thePU paint, the wooden plank is should be dust free. This is the AUTOMATIC OSCILATING SPRAY BOOTH , where the plank is get painted with the PU paint,matt coat and the clear laquar. It is movable which sprays the paint evenly on the wooden plank. 05 06 Tanmayee Palwe | Indian Kitchen | MIT Institute Of Design | 18
  • 19.
    This is anOVEN, in which the painted wooden plank is keeps for 6 to 8 hours for the drying purpose. On this stand the planks are keep for the inspection. 07 08 Tanmayee Palwe | Indian Kitchen | MIT Institute Of Design |19
  • 20.
    If there isuneven surface on the plank then it is BUFF & SAND with this hand machine for minor correction & makes it more shiny. After buffing it gets covered with the protective plastic film. 09 10 Tanmayee Palwe | Indian Kitchen | MIT Institute Of Design | 20
  • 21.
    For STAINING process,firstthey apply the stain on the solid wood & wipe it in some seconds after hand spraying. Again they apply the clear laquer on it after drying the first coat. After the painting, the materials get assembled according to the plan. 10 Tanmayee Palwe | Indian Kitchen | MIT Institute Of Design | 21
  • 22.
    HEIGHT LENGTH 150 /200 / 250 / 300 / 450 / 600 / 800 / 900 / 1200 560 / 580 700 DEPTH BASE UNITS HEIGHT LENGTH 150 / 200 / 250 / 300 / 450 / 600 / 800 / 900 / 1200 300 / 320 / 330 600 / 700 / 800 / 900 DEPTH WALL UNITS HEIGHT (MID) HEIGHT (TALL) LENGTH 560 / 580 1200 / 1500 / 1720 1950 / 2000 / 2020 / 2040 300 / 450 / 600 / 900 DEPTH TALL UNITS WALL UNITS WALL UNITS BASE UNITS TALL UNITS DADO DADO Modular kitchen comprises of three units - 01 Wall unit 02 Base unit 03 Tall unit Kitchen grace makes these units in following dimensions as per the space availabilty & users requirement. Tanmayee Palwe | Indian Kitchen | MIT Institute Of Design | 22 Kitchen Specifications1.6
  • 23.
  • 24.
    1.1 Kitchen grace IndiaPvt.ltd manufactures Modular kitchen for Indian users according to europian standards. Now they are in to a sector for manufacturing kitchen units according to indian standards, workflows and activities takes place in indian kitchen. Kitchen grace till now has operated in higher end market but for this unit to be utilized effectively, Kitchen gracewill have to focuss on middle end market too. It is achivable by making kitchen unit cost effective and yet offers unique value. Background of given problem statement Tanmayee Palwe | Indian Kitchen | MIT Institute Of Design | 24
  • 25.
    1.1 To Design anEconomy Range kitchen for an Indian Family residing in western Region belonging to Maharashtra keeping the Indian way of cooking & Indian Ergonomic standards. To do the required research & study of the user & the market.To give Layout options considering a standard size of kitchen & Indian Equipments used in the space. To Design the modules for the same using the available materials or suggest any alternate material .To do the detailing of the modules with permutations & combinations as required. To make a final mock-up of the entire sample kitchen. Initial problem statement Tanmayee Palwe | Indian Kitchen | MIT Institute Of Design | 25
  • 26.
    1.1 To do marketresearch to understand user perception about modular unit, their needs and requirements & their buying behaviour. To do user research to understand user problems in kitchen space. Their needs, buying behaviour and storing pattern,their daily activities in kitchen space as well as workflows and ergonomic problems. Initial brief Market research User research 01 02 Tanmayee Palwe | Indian Kitchen | MIT Institute Of Design | 26
  • 27.
  • 28.
  • 29.
    A kitchen isa room or area for preparing & cooking food in both domestic & commercial context. It is a place to store raw food items, containers & utensils used for preparing, cooking & serving purpose. It is a place to eat food as well as for required cleaning purposes. KITCHEN What is Primary need Secondary needs KITCHEN 0101 02 Kitchen Tanmayee Palwe | Indian Kitchen | MIT Institute Of Design | 29
  • 30.
    Commercial Kitchen01 A Commercialkitchen is a private area for cooking usually for service or large quantities for a buisness purpose.
  • 31.
    01 Types of Kitchen CommercialKitchen types + Commercial Kitchen Restaurant Kitchen Canteen Kitchen Commercial kitchens typically have tiled walls and floors and use stainless steel for other surfaces like workbench, but also for door and drawer fronts because these materials are durable and easy to clean. Commercial kitchens typically include much larger spaces than traditional residential kitchens. - Educational centers - Cruize - Hospitals - Work Places - Hotels - Army barracks - Railway Catering Baking Grill Saute These kitchens typically includes four working stations. Tanmayee Palwe | Indian Kitchen | MIT Institute Of Design | 31
  • 32.
    Residential Kitchen01 AResidential kitchen or Domestic kitchen is an area in a house for cooking food for family and also used for various activities.
  • 33.
    Residential Kitchen types Thefamily kitchen not only has to deal with cooking and eating, but may entail the supervision of children, and other activities. These kitchen becomes a status symbol which can have high range cooker, larger and more expensive appliances set up in the kitchen. Family Luxury Cupboard These kitchen have sink unit and open shelves above and below, which saves the cost of cabinets . Tanmayee Palwe | Indian Kitchen | MIT Institute Of Design |33
  • 34.
    Attributes for kitchenspace Systematic Sticky Sticky Dry Open Motion Natural Rough Large Smooth Colorful Delicate Festive Hard Aromatic Stinky Close Freedom Permanent Warm Simple Feminine Messy Straight Contamination Edgy WarmDark Nutritious Pure Healthy Ancient WetFast Slow Tasty Traditional Strong Light Adjustable Bulky Heavy BigSmall Clean Tasteless Salty Curved Fresh Sharp Temporary Dirty Hot Bright Contemporary Modern Clear FrostyNeat Burning HygienicSmoky Delicious Oily KITCHEN (Semi Private Zone) Tanmayee Palwe | Indian Kitchen | MIT Institute Of Design | 34
  • 35.
  • 36.
    Tanmayee Palwe |Indian Kitchen | MIT Institute Of Design | 36 01 History of kitchen 29,000 BC 753 BC 1490 When early man learnt how to control fire approximately 400,000 years ago, they discovered its incredible power of cooking food. It is believed that cooking on hot rocks first became substitute for cooking food. Cooking methods probably used easy to obtain items such as plant leaves, grass and stones. During bronze age of world’s earliest urbanised communities, the indus valley civilisation were resourceful people and first to have weatherproof cooking space. Each family hand crafted their mud hut home and euipped with an indoor oven. Later on ventilation was a real issue in cooking space because of major smoke problem.This led to advent of chimneys and raised hearths, meaning cooks no longer had to sit on the floor and chocking smoke was redirected to the skies. Central hearth
  • 37.
    15th Food was cookedon central hearths in large, high ceilinged halls. Smoke drifted out of unglazed windows or a hole in the roof. Century 18th Century Tanmayee Palwe | Indian Kitchen | MIT Institute Of Design | 37 In the middle of 15th - 18th century many technological advances brought major changes to kitchen.There is invention of stove, range and oven takes place step by step. - 1797 Built of massive brick providing with door to regulate air intake. Two roasting ovens and a hot water boiler were also included
  • 38.
    1843 1912 Beecher's "modelkitchen" String study Catharine Beecher's was the first inventor for sytematic kitchen design based on ergonomics. The design included regular shelves on the walls, ample work space, and dedicated storage areas for various food items. Beecher even separated the functions of preparing food and cooking it altogether by moving the stove into a compartment adjacent to the kitchen. Christine Fredericks first used the string study to optimize the workflow in kitchens. Her studies revealed that unnecessary distances were being covered due to poor kitchen layouts & showed the arrangement of kitchen cabinets and appliances had a huge impact on distances traveled and also the time spent in the kitchen. The string study is a method of measuring work processes and establishes correct and incorrect patterns of work. To identify a work pattern, a string is attached to the workers body and at the end of the day the length of string used is measured to establish the distance covered. Tanmayee Palwe | Indian Kitchen | MIT Institute Of Design | 38
  • 39.
    1926 Frankfurt Kitchen After ChristineFredericks solution on kitchen design, Architect Margarete Schütte-Lihotzky developed the concept for the Frankfurt Kitchen. Her primary goal in the design of the Frankfurt Kitchen was to reduce the burden of women’s labor in the home. The Frankfurt Kitchen should be regarded as part of a modernist effort to make all aspects of daily life more rational, efficient and hygienic, and less time-consuming. The design of the kitchen was based on the principles of F.W. Taylor's 'Scientific Management', a system that analysed the most efficient ways of undertaking tasks in the home and workplace. All the surfaces are easy to clean and without mouldings that trap dirt. A noticeable feature is the bank of metal storage containers for commodities like flour, rice and sugar. The housewife could easily reach them without even opening a cupboard door. There were no electric refrigerators at the time, but a low-level cupboard was vented from the outside to keep food cool. Even the disposal of rubbish was considered: the waste-bin was in its own cupboard that could be emptied from outside the kitchen in the hall. It was the first fitted kitchen and the prototype for all subsequent built-in kitchens. Three different sizes of kitchen were made for various sizes of flats. The basic ideas include - Optimized kitchen flow Shorter distances Maximizing the space available Tanmayee Palwe | Indian Kitchen | MIT Institute Of Design | 39
  • 40.
    1944 After the greatsuccess of Catharine Beecher's first ‘kitchen model’, Christine Frederick’s ‘string study’ and Margarete’s ‘frankfurt kitchen’ School of Architecture of the University of Illinois at Urbana-Champaign was founded in 1944. KITCHEN WORK TRIANGLE was formalized by this University with the three main functions in a kitchen are storage, preparation, and cooking. Stove Sink Fridge Use of Kitchen work triangle is for designing ergonomic and functional Kitchens. Kitchen work triangle is noting but the a triangle between these three ‘work centres’- 01 The kitchen sink - the place where you clean and prepare 02 The refrigerator - the place where you’re likely to store food 03 The stovetop - the place where you cook Kitchen Work Triangle The main working functions in a kitchen are carried out between the hob, the sink and the refrigerator. These three points and the imaginary line between them, make up what kitchen experts call the "work triangle". Tanmayee Palwe | Indian Kitchen | MIT Institute Of Design | 40
  • 41.
    01 No legof the triangle should be less than 4 feet (1.2 m) or more than 9 feet (2.7 m). 02 The sum of all three sides of the triangle should be between 13 feet (4.0 m) and 26 feet (7.9 m). 03 Cabinets or other obstacles should not intersect any leg of the triangle by more than 12 inches (30 cm). 04 If possible, there should be no major traffic flow through the triangle. 05 A full-height obstacle, such as a tall cabinet, should not come between any two points of the triangle. Kitchen work triangle guidlines - Tanmayee Palwe | Indian Kitchen | MIT Institute Of Design | 41
  • 42.
    Kitchen work triangleled to a few common kitchen forms, commonly characterized by the arrangement of the kitchen cabinets and sink, stove, and refrigerator: There are 6 types of Kitchen layouts - Kitchen Layouts 01 L Kitchen 02 U Kitchen 03 G Kitchen 04 Straight Kitchen 05 Gallery Kitchen 06 Island Kitchen L-KITCHEN U-KITCHEN G-KITCHEN STRAIGHT KITCHEN GALLERY KITCHEN ISLAND KITCHEN Tanmayee Palwe | Indian Kitchen | MIT Institute Of Design | 42
  • 43.
    Tanmayee Palwe |Indian Kitchen | MIT Institute Of Design | 43 Work triangle for kitchen layouts
  • 44.
    FOCUSED AREA INDIANRESIDENTIAL KITCHEN
  • 45.
    India is ahuge country consisting of various regions and cultures. Every region has their own special cuisine. Indian cuisine have many options and the dishes are characterized by the extensive use of various Indian spices, herbs, vegetables and fruits. “Vegetarianism” is also a name given to Indian Cuisine by many people. The way every family has their own living style, the same applies to Indian cuisine also. Each family of Indian cuisine includes a wide assortment of dishes and cooking techniques which varies from region to region. INDIAN FOOD
  • 46.
    EAST CUISINE SOUTH CUISINE WESTCUISINE Jammu kashmir cuisine Maharashtra cuisine Goa cuisine Kerala cuisine Andhra Pradesh cuisine West bengal cuisine Manipur cuisine Assam cuisine Gujrath cuisine Rajasthan cuisine NORTH CUISINE Punjab cuisine Delhi cuisine DIVERSITY IN INDIAN FOOD Tanmayee Palwe | Indian Kitchen | MIT Institute Of Design | 46
  • 47.
    It’s an ancientproverb “Breakfast like a King, Lunch like a Prince, and Dine like a Pauper” Thus most Indians follow this and take their diet accordingly. As compaired to other countries,Indian women spends most of the time in kitchen in preparing Breakfast, Lunch, Evening Snacks & Dinner. It is a place where women start their day. IMPORTANCE OF KITCHEN IN INDIAN CONTEXT Breakfast Lunch Evening snacks Dinner Food is an integral part of Indian culture, It plays an important role in the everyday family life and in the festival celebrations. In India Food, Culture, Religion and Indian festivals are all closely related. Food Religion Culture Indian Festivals Tanmayee Palwe | Indian Kitchen | MIT Institute Of Design | 47
  • 48.
    WHY IS INDIANKITCHEN SO FAMOUS? (Basics of Indian Kitchen) Indian different cuisine Indian Utensils 01 Indian utensils 03 Indian festivals & food 02 Cooking requirements 04 - Garnishing items - Condiments(Spices, chutneys & pickles, onions,mint) Kinds of utensils used for different purposes, festivals & occasions. Each festival in each region has its own particular foods and sweets appropriate to the season and crops. Indian food is classified by traditions and region- wise available spices, herbs, vegetables & fruits. Tanmayee Palwe | Indian Kitchen | MIT Institute Of Design | 48
  • 49.
    No.of activities during preparation 05 Sitting & standing work 05 Time consuming recepies 07 No.of food items ina meal 08 Necessary activities done before actual cooking Various postures considered during the process. Number of processes are involved in making one dish which takes long time. Tanmayee Palwe | Indian Kitchen | MIT Institute Of Design | 49
  • 50.
    Turmeric Cumin seedsBay Leaves Black mustard Red chilly & powder SPICES & HERBS (FRESH & DRIED) WHAT MAKES “INDIAN FOOD” SPECIAL & DIFFERENT? GingerClove Kari patta Cinamon GarlicCardamomBlack pepper Coriander Shepa Basil leaves/Tulsi Mint Tanmayee Palwe | Indian Kitchen | MIT Institute Of Design | 50
  • 51.
    SPECIALITY OF “INDIAN FOOD”INDIAN FOOD Change Simple Delicious Stain Complicated Roasted VarietyOilyHealty Spices Techniques Messy Hurbs Essence Aroma Skills FlavorSweetSalty HotCold Herbs CondimentsTasty Time consuming recipes NutritiousColorful Mixture Traditional Tanmayee Palwe | Indian Kitchen | MIT Institute Of Design | 51
  • 52.
    Indian modular andtraditional utensils (which are still in use!) Rice server Laddle (For dal, curry) Turner / Palta’ (For omlet) Skimmer / Zara’Turner SS Turner CookingspoonsServingspoons Measuringspoons GLASS SPOONS Tanmayee Palwe | Indian Kitchen | MIT Institute Of Design | 52
  • 53.
    Indian modular andtraditional utensils (which are still in use!) Flatpans Nonstickpans SS Saute pan PANS POTS KADHAI SSCookingpots Stackablecookin potswithcopper baseIron kadhai Aluminium kadhaiNon stick kadhai Tadka’ kadhai Tanmayee Palwe | Indian Kitchen | MIT Institute Of Design | 53
  • 54.
    Indian modular andtraditional utensils (which are still in use!) GraterServing&Mixing bowls Strainer SS bowls Glass / plastic bowls Tea strainer Skimmer Sifter Pressurecooker GENERAL Pincers/Pakkad’ Tanmayee Palwe | Indian Kitchen | MIT Institute Of Design | 54
  • 55.
    Indian modular andtraditional utensils (which are still in use!) MasherLemon squeezer Tong / Chimata’ Whisk (to whip up curd or egg) GENERAL Casserole Churner / Ravi’ Pata Varvanta’ Ghee container / Loti’ Flat platter/paraat’ Khalbatta’ Polpat + belan’ Tanmayee Palwe | Indian Kitchen | MIT Institute Of Design | 55
  • 56.
    Indian modular andtraditional utensils (which are still in use!) Idli steamer Puran Poli’ making machine LidsforpansCrockery Cup & Saucers Dinner set Tanmayee Palwe | Indian Kitchen | MIT Institute Of Design | 56
  • 57.
    RESIDENTIAL KITCHEN -“MAHARASHTRA REGION” FOCUSED AREA
  • 58.
    IMPORTANCE OF FOODIN “MAHARAHSTRA” Meaning- “While consuming food, one should remember God. The food should be eaten as one is offering samagri in hawan to God, that is neither too much nor too less and consumed with positive attitude. Optimum intake of food allows proper digestion.” The people of this state also believe in offering their food first to the lord as a thanksgiving for all that He has given. Especially, on festive occasions, some specific mithais (sweets) are offered such as Ukadiche Modak (Ganesh Chaturthi)and Satyanarayan Puja Sheera. Lunch Dinner vdnI kv; 6eta nam ^ya &IhrIce, ,ecakufate6manetohnvhjhs ,hM/bR`upehnNAaaVTIVIjIrknvIj ]drwrn nohe janIje y)kmR ” “ It is well known that the people of Maharashtra consider their food as Anna he poornabrahma meaning they consider anna, or food, equal to Brahma, or the creator of the universe. Food is God and should be worshipped. Tanmayee Palwe | Indian Kitchen | MIT Institute Of Design | 58
  • 59.
    WHAT MAKES “MAHARAHSTRIANFOOD” DIFFERENT? MAHARASHTRIAN FOOD TYPES _ 1) Konkani food 2) Varhadi food Grated cococnut PeanutsKokum Rice Tamarind Jaggery Bajri Jowar “STAPLE FOOD” OF MAHARASHTRA Tanmayee Palwe | Indian Kitchen | MIT Institute Of Design | 59
  • 60.
    Poha Thalipith Misalpav Upma Puri bhaji Tea Sheera Coffee BreakfastMAHARASHTRIAN BREAKFAST Tanmayee Palwe | Indian Kitchen | MIT Institute Of Design | 60
  • 61.
    Lunch MAHARASHTRIAN LUNCH- Veg Thali Papad Poli Puri Masala Rice SweetdishKoshimbir or Salad Tak or chass Dry bhaji Rice Dal Gravy bhaji Chutney Regular Lunch Ocassional Lunch A Maharashtrian meal can not be completed without “CHAPATI” or “BAJRA ROTI”. Tanmayee Palwe | Indian Kitchen | MIT Institute Of Design | 61
  • 62.
    Rice Solkadhi Chapati Fish ThaliChicken Thali Lunch MAHARASHTRIAN LUNCH - Non-Veg Thali “COCONUT” is a Special ingredient of Maharashtrian Nonveg Thali. Fried fish Tanmayee Palwe | Indian Kitchen | MIT Institute Of Design | 62
  • 63.
    Modak Chakli Ladoo Shrikhand Pura poli MAHARASHTRIAN FESTIVEFOOD Requires - 01] Lot of time to make it 02) Special utensils 03] Space on countertop Tanmayee Palwe | Indian Kitchen | MIT Institute Of Design | 63
  • 64.
  • 65.
    Importance of MARKETRESEARCH for designing an INDIAN KITCHEN 01 Aesthetic value of kitchen unit - DIfferent finishes/forms 02 New Technology 03 Materials used for kitchen unit 04 Current trends 05 User requirements/needs 06 Market perception for modular units 07 Customer perception for modular kitchens 08 Brand analysis - New features / Any failure 09 Budget factor Tanmayee Palwe | Indian Kitchen | MIT Institute Of Design | 65
  • 66.
    Tanmayee Palwe |Indian Kitchen | MIT Institute Of Design | 66 Kitchen Brands -
  • 67.
    Visited Kitchen Brands- 01 Nolte 02 Kitchen Decor 03 Radiance Kitchens Tanmayee Palwe | Indian Kitchen | MIT Institute Of Design | 67 - They know about the currents trends through net research. - Before starting any new product they dont conduct any net/user research. - Marine ply with laminates for lower cost Marine play with acrylic finish for higher cost Solid wood as per higher market demands. - For countertop they provide - Corian/Italian marble/ Granite - Target customer - Lower to Higher market - They know about the currents trends (new / hardware/fittings) through net research. - Marine ply with laminate is used in consideration with the usablity by servants/ Maid. - For countertop they provide - Corian/ Quatz/ Granite - Target customer - Higher end market. - They know about the currents trends through exhibitions, board of Interior designers & Architects. - Marine ply with german acrylax Only 5% of solid wood is used. - Target customer - Higher middle as well as upper market
  • 68.
    Market analysis -“User’s Kitchen buying behaviour” User segments 01 02 03 Lower Market Middle Market Higher Market Middle Higher Step 1 01 Functionality 02 Budget / cost factor 03 Aesthetics Step 2 (Final Selection) 01 Budget 02 Functionality 03 Aesthetics Step 1 (Final Buying) 01 Aesthetics / Finishes 02 Functionality 03 Budget Tanmayee Palwe | Indian Kitchen | MIT Institute Of Design | 68
  • 69.
    01 Tanmayee Palwe |Indian Kitchen | MIT Institute Of Design | 69 Mostly International brands in India uses fitting and accssesories of brands - Hettick, Blum, Hafale, Grass (for indian kitchens where the requirements are quite different and sometimes use of such accssesories get failed) 02 High end market mostly goes for Solid wood wih different finishes than marine ply or MDF. 03 High end market goes for wooden accessories than the wire/metal accessories.
  • 70.
  • 71.
    Tanmayee Palwe |Indian Kitchen | MIT Institute Of Design | 71 TARGETED USER MIDDLE ECONOMY USER
  • 72.
    User questionnaire format: USER RESEARCH – QUESTIONNAIRE Objective: To understand the User Perception about the modular kitchen and storage methods as well as needs/requirements in the kitchen space. User Profile: Name: Age: Community: Education: Family size: Working/housewife Occupation: Height: Location: 1) What do you know about the modular kitchen? what is your perception about the modular kitchens? 2) What comes in your mind about modular kitchen? 3) Why didn’t you set up the modular kitchen unit in your house? (In case of semi-modular and non-modular units) A)Costly B)Space consuming C)Not needed D)Future planning E)Other reason 4) Who cooks the food? A)Self B)other member C)Maid 5)How many people cook at a time? Space study: Open or close kitchen? Layout of the kitchen: Total area of the kitchen: No. of windows: (Window dimension – height, length, width) Dado material: Dado height: How often you clean dado part? Flooring material: Skirting Material: Skirting height: Tanmayee Palwe | Indian Kitchen | MIT Institute Of Design | 72
  • 73.
    Observations : Stuffson countertop 1)Appliances 2)Utensils 3)General items: Food habits: What different types of food items you cook? Breakfast: lunch: evening snacks: dinner: Daily activities in the kitchen from making breakfast to dinner: Activities: Sitting- Standing- How much space is required for sitting work? Total time spends : Breakfast- Lunch- Dinner- Festivals Food items: No. of peoples:(During festival time in kitchen): Vegetarian / Non-vegetarian? If Non-vegetarian, how often they eat non-veg? How much time they spend to cook the particular dish?(Daily cooking dishes – breakfast items, lunch, dinner) Where you stand/sit or where you do the preparation? (Different food items, Aamras) (How Much space required doing a particular activity/dish) Priority for kitchen space in the house: Placement of “devhara”: 1) Kitchen 2) Other room No.of dustbins in kitchen space : Placement of dustbin: Placement of dining table (Kitchen/Dining area/Living room) and where do they eat food? Tanmayee Palwe | Indian Kitchen | MIT Institute Of Design | 73
  • 74.
    Placement of: A)Water filter/matka/aqua guard? B) Pickles/chutneys/sauf’ C) Utensils after wash for drying purpose: D) Cooked food: E) festive made items (e.g. Diwali food items): Hob type: 2 / 3 / 4 / 5 burners Source of ventilation: Chimney / Exhaust fan / Window Have storage methods of daily needed items been in reach or not? (Work triangle) Whether the storage is enough or not? Sink type: Single/ Double/ Triple bowl. What are their requirements about the sink? Any problem they are facing with the current sink. Where do you clean the utensils? Counter top sink / dry balcony Where do you keep the soap case and the otta cleaner and how? Counter top: Material Dimension: Width - Height- Thickness- Storage methods: Do you have a storeroom? If yes, what do you store there? Storage material: A)Wooden racks B)SS racks C)Plastic baskets D)Other Storage type: A)Wall hanging B)Floor C)Under countertop D)On countertop E)Other Are you using separate utensils to cook non-veg food? Where do you store these utensils? Tanmayee Palwe | Indian Kitchen | MIT Institute Of Design | 74
  • 75.
    FOOD ITEMS BUYINGBEHAVIOUR QUANTITY STORAGE METHOD(CONTAINER) SHAPE OF CONTAINER CONTAINER SIZE STORAGE SIZE(lxbxh) EXTRA STORAGE(SHAPE, CONTAINER,SIZE) Daily Weekly Monthly Yearly SS Tupperware Glass Other(Gunnybag/kothi) Oval Rectangular GRAINS Wheat Rice Jowar Bajri PULSES Moong Tur Harbhara Urad Chana Rajma Matki Vaal Masoor Chole Chawli DRY FOOD Buiscuits Khakra Dryfruits dry raw food/snacks GENERAL Sugar Salt Tea powder Coffee Bournvita Poha Oil Sago Jaggery Rava Maida Extra spices Peanuts Tamarind Kokum Onions Potato Garlic coconuts Food items storage methods: Tanmayee Palwe | Indian Kitchen | MIT Institute Of Design | 75
  • 76.
    Utensils storage methods: UTENSILS DAILY- USED OCCASIONALY - USED QUANTITY EXTRA SETS SIZE SPACE REQD.FOR STORAGE PHOTOS Glass SS Glass Spoons Cooking Zara Rice server Ladle (For Dal,curry) Palta'(For Omlet) Serving Pans SS/Aluminium/Iron Non-s ck Pots SS Stackable(ss body, copper bo om) Kadhai Iron Non-s ck Bowls Glass SS Plates Plates (large) Plates (small) General Lids (For pots and pans) Parat' Polpat + Belan Pressure cooker Chimta Ravi (For dal,bu ermilk) Sandashi/Pakkad Measuring spoons Ballon whisk(To whip up curd/egg) Casserole Lemon squeezer (Plas c/metal) Masher Khalba a Hand grater/slicer knives Spice box Icecream scooper Tin opener Peeler Tray Strainer Diff.types/size of plas c/metal Si er with diff.sieves(For grains/flour) Ghee container (Lo ) Oil container Crockery Cup and saucers Idli steamer Puranpoli maker' Modak maker' Dhokla steamer add on Extra utensils UTENSILS DAILY USED OCCASIONALY USED QUANTITY EXTRA SETS SIZE SPACE REQD.FOR STORAGE PHOTOS Tanmayee Palwe | Indian Kitchen | MIT Institute Of Design | 76
  • 77.
    Appliances storage methods: APPLIANCESPLACEMENT SPACE REQD.FOR STORAGE NO. OF ATTACHMENTS STORAGE METHOD SPACE REQD.FOR STORAGE PHOTOS Refrigerator Microwave (Utensils) Mixer(A achments) Dishwasher Toaster Juicer Food Processor Hot plate (Utensils) add on General items storage methods: STUFFS IN KITCHEN SPACE PLACEMENT PHOTOS Apron Alluminium foil Tissue Paper Lighter Napkin Gas cylinder Gas Pipeline Glass stand Utensils drying stand Fruit basket scissors Broom Tanmayee Palwe | Indian Kitchen | MIT Institute Of Design | 77
  • 78.
    Modular Semi ModularNon Modular - Modular kitchen is a set of modules which can easily fix, allows dismantle the whole kitchen and it to a new space and fix it all over again. - The kitchen includes Kitchen cabinets, Kitchen Appliances, cooking range, Kitchen chimneys, Kitchen Countertops. Semi Modular kitchen is where Platform is already made out of Marble with Granite Counter-top by the civil professionals and one can add trollys and shutters below the existing provided countertops of granite which cannot be easily move to next place and fix. Non Modular kitchen is where countertop is already made out of stone like granite without shutters and cabinets and one can dump the utensils and conatainers openly. Tanmayee Palwe | Indian Kitchen | MIT Institute Of Design | 78 7 5 8 20 Houses
  • 79.
    Food Utensils CrockeryAppliances Miscellaneous - Frequently / daily needed food containers storage - Dry food / Snacks storage - Extra food storage - Daily used / occasionally used utensils - Cylinder - Sink cabinet - Duster/apron/napkins handlgloves storage - Polythene/garbage bags - Dustbin - Scissors - Utensils drying stand - Applinaces attachments - Microwave - Oven - Fridge - Hand mixer - Food processor - Juicer - Daily used / extra Cup & sauscer 01 02 03 04 05 Tanmayee Palwe | Indian Kitchen | MIT Institute Of Design | 79
  • 80.
    01 Aarti Dabir Bavdhan “ Userfriendly & Organised Kitchen”Modular Kitchen perception : User Profile Age - 46 | Height - 5' Working 9 - 6 Cooking person - self | maid 2 members CT height - 700mm(100 skirting) CT width - 600mm Space study Modular Kitchen Type - Gallery 168 sq.ft Total volume of cabinet = 2.1 m3 0.67 m3 0.82 m3 0.19 m30.15 m3 0.27 m3 food utensils crockery appliances miscellaneous Food Utensils Crockery Appliances Misc. 32 % 39% 13% 7 % 9% Tanmayee Palwe | Indian Kitchen | MIT Institute Of Design | 80 She Is working and leaves home by 9 -9:30 in morning by finishing household work in 1- 1.1/2 hours with the help of her maid. It is not easy for her to look after evrything daily. Her maid everyday cleans DADO part of the kitchen wall. In her kitchen she has got sufficient space for cooking and related activities on the countertop. She is happy with the current storage space and likes to be everything clean on the countertop immedietly after cooking.She buys everyday needed food items monthly.
  • 81.
    Dry countertop Appliances - Mixer Microwave Wetcountertop Freqently needed food items - Sugar Tea Powder Coffee Powder Salt Ghee container Oil container Serving spoons No storage to keep - Parat’ Polpat + belan Lids of cooker Dry balcony storageStuffs on countertop Tanmayee Palwe | Indian Kitchen | MIT Institute Of Design | 81
  • 82.
    02 User Profile Age -40 | Height - 5'3” Doctor Cooking person - self 4 members (Husband-wife & 2 childrens) Vaishali Deshmukh Magarpatta city “ Organised solution for kitchen with hightech appliances ” CT height - 700mm(150 skirting) CT width - 560mm Space study Type - Island 400 sq.ft Modular Kitchen Food Utensils Crockery Appliances Misc. Total volume of cabinet = 4.53 m3 39 % 25 % 0% 5 % 21% Tanmayee Palwe | Indian Kitchen | MIT Institute Of Design | 82 She is a doctor and has flexible working hours. She has a very large space for kitchen and have enough storage area.She cooks food by herself and has maid only for cleaning purposes. She does’nt like to keep freqently required food and utensils like tea/sugar/oil containers and cooking spoons inside the cabinets. She buys everyday needed food items montly and takes wheat and rice once in a year and stores it in the drybalcony. She does all the activities in standing posture. 1.77 m3 1.12 m3 0.23 m3 0.94 m3 Vaishali Deshmukh
  • 83.
    Stuffs on countertop Drycountertop Dry countertop Wet countertop Appliances - Microwave Cup & saucers standFreqently needed food items - Sugar Tea Powder Coffee Powder Salt Ghee container Oil container Cooking spoons Sink Area - Cutting Board Tray Tanmayee Palwe | Indian Kitchen | MIT Institute Of Design | 83
  • 84.
    Observation + Problems storageproblems No proper storage for keeping pans, so it is difficult to remove the pan which is at bottom. No storage for polpat + belan’. 0201 - No proper placement of grater, casserole, pots. - Wastage of storage. 03 Tanmayee Palwe | Indian Kitchen | MIT Institute Of Design | 84 Observation + Problems
  • 85.
    Observation + Problems storageproblems No large storage for keeping cooking spoons. No stoarge for tray and cutting board. 01 0204 05 - No place to keep the onions potatos & garlic in the kitchen. 06 Tanmayee Palwe | Indian Kitchen | MIT Institute Of Design | 85
  • 86.
    03 User Profile Age- 40 | Height - 5'3” Doctor Cooking person - self 4 members (Husband-wife & 2 childrens) Rupali Telvekar Baner “ Everything is within in a reach ”Modular Kitchen perception : Type - L type CT height - 700mm(150 skirting) CT width - 560mm Space study 110 sq.ft Modular Kitchen Food Utensils Crockery Appliances Misc. Total volume of cabinet = 2.57 m3 56 % 29 % 4% 0 % 12% Tanmayee Palwe | Indian Kitchen | MIT Institute Of Design | 86 She is a homemaker and prepares breakfast and lunch altogether in 1.1/2 - 2 hours. She buys daily needed food items once in a 6 months and takes wheat, rice yearly. She has got quite large spaces to store the extra food items. In her kitchen there is enough space for cooking and related activities on countertop. 1.43 m3 0.74 m3 0.09 m3 0.32 m3 Rupali Telvekar
  • 87.
    Dry countertop Utensils - WaterContainers Polpat’ Appliances - Mixer Stuffs on countertop Tanmayee Palwe | Indian Kitchen | MIT Institute Of Design | 87
  • 88.
    Observation + Problems Theremight have the chances of falling down the utensils which is at the top while taking utensils at the bottom. No Storage for Polpat’. Storage problems 01 02 Tanmayee Palwe | Indian Kitchen | MIT Institute Of Design | 88
  • 89.
    Observation + Problems generalproblemsstorage problems No dustbin has kept inside the cabinet- - According to this user, it is difficult to access / handle the dustbin with dirty hands. No Proper place to keep to keep the napkins. 03 04 Tanmayee Palwe | Indian Kitchen | MIT Institute Of Design | 89
  • 90.
    04 User Profile Age -35 | Height - 5'3” Homemaker Cooking person - Self & Mother-in-law 4 members (Husband-wife, 1 daughter, Grand Parents) Pradnya Deshmukh Kothrud “ Things are easily accessible & are arranged in defined order ” Type - L type CT height - 830mm(100 skirting) CT width - 660mm Space study 120 sq.ft Modular Kitchen Food Utensils Crockery Appliances Misc. 0.75 m3 0.68 m3 0.16 m3 0.44 m3 Total volume of cabinet = 2.08 m3 36 % 33 % 8 % 0 % 21 % Tanmayee Palwe | Indian Kitchen | MIT Institute Of Design | 90
  • 91.
    Wet countertop Appliances - Mixer Freqentlyneeded food items - Sugar Tea Powder Coffee Powder Salt Ghee container / Oil container Sink Area - Water Containers Utensils Cleaning materials Dry countertop Appliances - Microwave Utensils - Cooked food Spoon stand General - Fruit Basket Crockery - Cup & sauscers stand Stuffs on countertop Tanmayee Palwe | Indian Kitchen | MIT Institute Of Design | 91
  • 92.
    Placement of soapcase & other cleaning materials - - According to this user, soap is required throughout the day for cleaning cup and saucers and other deligate utensils, so it is difficult to take everytime out of the cabinets. Placement of duster - - After cleaning the countertop, she usually keeps the duster on the sides of the countertop in open to dry quickly. No Proper place to keep napkins. - This user required napkins in front of her while cooking to wipe out the hands quickly. 01 02 general problems Observation + Problems Tanmayee Palwe | Indian Kitchen | MIT Institute Of Design | 92
  • 93.
    Observation + Problems NoProper placement for parat and pans’ No Proper storage to keep Polpat’, Pans and kadhai’s Corner Palce is used to dump miscellaneous things - - Difficult to clean the inner space and floor because of so many things placed on the floor. storage problems 04 0503 Tanmayee Palwe | Indian Kitchen | MIT Institute Of Design | 93
  • 94.
    05 User Profile Age -45 | Height - 5'3” Working Cooking person - self 4 members (Husband-wife & 2 childrens) Sushma Khopkar Kothrud “ Everything gets hide behind the cabinets” CT height - 700mm CT width - 650mm Space study Semi Modular Kitchen Food Utensils Crockery Appliances Misc. 35 % 40 % 8 % 0 % 15 % Type - L type 100 sq.ft Total volume of cabinet = 2.25 m3 Tanmayee Palwe | Indian Kitchen | MIT Institute Of Design | 94 0.77 m3 0.90 m3 0.18m3 0.33 m3 Sushma Khopkar
  • 95.
    Stuffs on countertop Wetcountertop Freqently needed food items - Sugar Tea Powder Coffee Powder Salt Ghee container Oil container Appliances - Mixer Utensils - Cooked food Sink Area - Utensils Cleaning materials Dry countertop Appliances - Microwave General - Fruit Basket Tanmayee Palwe | Indian Kitchen | MIT Institute Of Design | 95
  • 96.
    Observation + Problems Soapcase, other cleaning materials & dustbin has kept outside the cabinet though there is a seperate cabinet for those. That cabinet are use for keeping big utensils - cooker, parat’ as there is no large cabinet. General problems 01 02 Tanmayee Palwe | Indian Kitchen | MIT Institute Of Design | 96
  • 97.
    No proper storagefor pans, polpat’, parat’. Storage problems Corner Palce is used to dump miscellaneous things - - Difficult to clean the inner space and floor because of so many things placed on the floor. 03 04 Observation + Problems Tanmayee Palwe | Indian Kitchen | MIT Institute Of Design | 97
  • 98.
    06 User Profile Age -43 | Height - 5'3” Homemaker Cooking person - self 4 members (Husband-wife, Son & Grandmother) Meenal Ghorpade Baner “ Easy accessible & organised storage ” CT height - 780mm CT width - 600mm Type - L type Space study Semi Modular Kitchen 100 sq.ft Food Utensils Crockery Appliances Misc. 31 % 27 % 11 % 0 % 26 % Total volume of cabinet = 1.79 m3 Tanmayee Palwe | Indian Kitchen | MIT Institute Of Design | 98 0.55 m3 0.47m3 0.19m3 0.45m3 Meenal Ghorpade
  • 99.
    Stuffs on countertop Wetcountertop Sink Area - Water container Utensils cleaning materials Cutting trayAppliances - Microwave Containers - Cooked Food Frequently needed food items - Oil Container Tanmayee Palwe | Indian Kitchen | MIT Institute Of Design | 99
  • 100.
    Observation + Problems Storageproblems No proper placement for pans and polpat’+ belan’. No storage for cutting board. 01 02 Tanmayee Palwe | Indian Kitchen | MIT Institute Of Design | 100
  • 101.
    Observation + Problems Generalproblems Placement of dustbin outside the cabinet though there is seperate storage inside the cabinet. Placement of soap case & other cleaning materials on countertop. 03 04 Tanmayee Palwe | Indian Kitchen | MIT Institute Of Design | 101
  • 102.
    07 User Profile Age -55 | Height - 5' Homemaker Cooking person - self 3 members (Husband-wife & Grandmother Vrushali Railkar Baner “ Cabinet system for easy storing of utensils ” CT height - 800mm CT width - 650mm Type - L type Space study Semi Modular Kitchen 100 sq.ft Food Utensils Crockery Appliances Misc. 35 % 20 % 6 % 4 % 33 % Total volume of cabinet = 2.28 m3 Tanmayee Palwe | Indian Kitchen | MIT Institute Of Design | 102 She is a homemaker. She prepares breakfast and tiffin in the morning and makes lunch during luch time. Because of her placement of cooking range on small side of countertop she does’nt get enough space for cooking. She has additional stainless steel rack for keeping utensils as there is no space for big uensils in the cabinets provided. She buys daily needed food items once in year and stored it inside the bed storage. 0.80 m3 0.44 m3 0.14 0.08 0.74m3 Vrushali Railkar
  • 103.
    Storage problems 01 02 -Placement of cleaning materials on window seal, though there is seperate storage under cabinet. 03 - Additional storage is required for keeping utensils,containers because of size limitations of the cabinets. 01 - No storage for veli’ ,Polpat’,pans inside the cabinet. - Width of countertop is very less to work upon. - No proper placement for pans Observation + Problems Tanmayee Palwe | Indian Kitchen | MIT Institute Of Design | 103
  • 104.
    08 User Profile Age -43 | Height - 5' Homemaker Cooking person - self 3 members (Husband-wife & Daughter Devyani Paul Bavdhan “ Knows about IsIand kitchen and coffee/breakfast table” Type - L type CT height - 830mm CT width - 680mm Space study Semi Modular Kitchen 88 sq.ft Food Utensils Crockery Appliances Misc. 21 % 42 % 2 % 4 % 31 % Total volume of cabinet = 2.29 m3 She is a homemaker. In morning while making breakfast she prepares tiffing and lunch simultaneuolsy in 1-1/2 hours. while cooking she does’nt do any other household activity. She requires large space on counter top as she is not happy with the depth of countertop.She does’nt believe in vastushastra. She Buys daily needed grocery montly. She does’nt do any sitting work while cooking, everything is done on the countertop Tanmayee Palwe | Indian Kitchen | MIT Institute Of Design | 104 0.47 m3 0.97 m3 0.08 0.70 m3 0.42 Devyani Paul
  • 105.
    Tanmayee Palwe |Indian Kitchen | MIT Institute Of Design | 105 Stuffs on countertop Sink Area - Utensils drying stand Utensils Cleaning materials on window seal wet countertop Freqently needed food items - Sugar Tea Powder Coffee Powder Salt Ghee container Oil container Utensils - Cutting board Glass stand General - Dustbin
  • 106.
    Observation + Problems Difficultto access oven because of the placement of napkins. Storage problems 030201 - No Proper place to keep the duster. - Placement of cleaning materials on window seal, though there is seperate storage under cabinet. Cutting board has been kept in open space on the countertop - - “According to this user, cuttin board is required many times in a day so it should be in open space than cabinets for easy handling.” Small dustbin on the countertop - - “It is very easy to throw wet garbage immedietly than in dustbin inside the cabinet.” Tanmayee Palwe | Indian Kitchen | MIT Institute Of Design | 106
  • 107.
  • 108.
    Targeted User Market Install Kitchen unitsonly once for a lifetime. Unaware about the importance of ergonomics in kitchen space. 01 02 Unaware about the importance of worktriangle accroding to activities and workflows to minimise working time in rush hours. 03 Tanmayee Palwe | Indian Kitchen | MIT Institute Of Design | 108 Users reality about kitchen spaces -
  • 109.
    Why most of“Targated User Market” gœs for “Semimodular” or carpentary made why not “Modular?” 01 02 03 Most of user are unaware about the brands. If knows about the brands then it is very costly to install in kitchen space. Only Cabinets and trollys - “means MODULAR KITCHEN” Tanmayee Palwe | Indian Kitchen | MIT Institute Of Design | 109
  • 110.
    In today’s constructionlimited space is provided for prepararion and cooking which is a primary need. Though cabinets are installed but many required things and utensils remain outside the cabinets as there is no enough space in cabinets. No proper zoning of components of kitchen - Cooking area, Washing area and Storage in kitchen space according to Indian activities and workflows. 01 02 03 Tanmayee Palwe | Indian Kitchen | MIT Institute Of Design | 110 Current scenario about kitchen units and spaces -
  • 111.
    Modular Kitchen Semi Modular Kitchen Non Modular Kitchen More emphasis isgiven on finishes, aesthetic value,hardware fittings, accecssories and less on the size of cabinets suitable for Indian large utensils & other storage requirements according to indian needs and requirements as well as space for cooking and preparation which is a primary need of kitchen space. No proper sequence and organisation of utensils and containers according to workflow and activities because of limitaion of cabinet sizes. No standards are set to make a cabinet in kitchen space. They are made according to the availability of empty spaces available in kitchen. Many of the utensils and food containers remain outside the cabinet bacause of no space planning and cabinet size constraints and requires additional racks/ storage methods to store, which doesn’t suit with the kitchen unit. Utensils & containers are visible in kitchen space. Tanmayee Palwe | Indian Kitchen | MIT Institute Of Design | 111 facts about kitchen units -
  • 112.
    Ideal Indian Kitchen 01 Ergonomically convenient- 1) In terms Height / Width of countertop. 2) Efficient Space for primary as well secondary needs of kitchen space. 03 Zoning for storage methods for smooth working in kitchen. (In consideration with the available kitchen layouts.) 02 Appropriate Storage methods for Indian requirements (Kind of Utensils, daily food requiremets and buying behaviour) Cooking plays a very important role in every Indian house. Before cooking , primary activities like the following need to be done which are very time consuming - Cutting Chopping Washing Making dough If there is no proper sapce to do these primary activities then there is no sussccesful implimentation of this product. To design a kitchen which should be - Tanmayee Palwe | Indian Kitchen | MIT Institute Of Design | 112 1.11.1 Refined design brief :
  • 113.
    Ideal Indian Kitchen For Designing requires studyof - a) User activities in kitchen From making breakfast to dinner. space. a) User food Buying behaviour b) Everday food requirements. a) Daily Utensils requirements 01 02 03 04 Tanmayee Palwe | Indian Kitchen | MIT Institute Of Design | 113
  • 114.
    Working as wellas most of the non working women do many activities simultaneously to make breakfast & lunch together. 15-20 mins Making Tea/coffee/milk Serving Cleanining house Washing Utensils Preparartion for breakfast -Cutting -Washing -Cooking -Microwave -Serving Preparartion for vegetable -cutting -washingPrimary activities Side activities Breakfast Tanmayee Palwe | Indian Kitchen | MIT Institute Of Design | 114 Activities in kitchen space - (Morning time)
  • 115.
    30-45 mins Washing clothes(washing machine) Devpooja’ - Making dough - Washing rice & pulses -Vegetable Cooking -Making Rotis Fiiling tiffins Lunch Tanmayee Palwe | Indian Kitchen | MIT Institute Of Design | 115
  • 116.
    Evening snacks Dinner Food preaparation -Cutting Washing - Making dough - Making Rotis - Vegetable Cooking - Washing rice & pulses ServingEntertainment activities - Watching tv Chatting Cleaning Activities in kitchen space - (Evening time) Tanmayee Palwe | Indian Kitchen | MIT Institute Of Design | 116
  • 117.
    Breakfast Lunch Evening snacks Dinner -Daily - Festivals / Special occasions. Cooking in morning time | Rush Hours Cooking in evening time | Ralaxing Hours - Performs many activities simultaniously. - Requires more energy for accomplish every task. - For working women as well as non working women who has to make tiffins and breakfast, they have to finish all the activities in a less time. - Main focuss is only on cooking, so cooking activities are same but less energy is required as compared to morning activities. - There is no time pressure while doing activies. Tanmayee Palwe | Indian Kitchen | MIT Institute Of Design | 117--
  • 118.
    Time consuming cookingactivities in kitchen - 01 02 03 01 Atta container 02 Oil 03 Salt 03 Water 04 Pot 01 Pan 02 Polpat + Belan 03 Casserole 04 Oil 05 Atta Container 06 Wooden shaker 01 Chopping board / Veli / Knife 02 Plate / Pot 03 Water Kneading dough Making Roti Chopping Vegetables Tanmayee Palwe | Indian Kitchen | MIT Institute Of Design | 118
  • 119.
    - These 4are most time consuming activties as compared to others while cooking and it requires quite large space. - For every activity force required is different. 04 01 Cleaners 02 Utesils drying stand Washing Utensils Tanmayee Palwe | Indian Kitchen | MIT Institute Of Design | 119
  • 120.
    REPETATIVE ACTIONS +FORCE + MORE TIME IS REQUIRED01 01 Atta container 02 Oil 03 Salt 03 Water 04 Pot Kneading dough - Twice in a day 5 -7 MINS Shoulder pain + stress on elbow point Relaxing posture for work Countertop height - Too high or above the elbow height = Awkward Shoulder Posture Too low = Awkward back posture The height of the countertop should be 10-25 cms below the elbow height for easy working. Tanmayee Palwe | Indian Kitchen | MIT Institute Of Design | 120
  • 121.
    Indian Women Heightobserved during reseach - 5’ - 5’3” 1504 mm 950 mm Elbow height from ground level Ideal height of contetop for kneading (Indian User) 800 - 850mm Tanmayee Palwe | Indian Kitchen | MIT Institute Of Design | 121
  • 122.
    02 01 Pan 02 Polpat+ Belan 03 Casserole 04 Oil 05 Atta Container 06 Wooden shaker Making Roti - Twice in a day This includes 2 tasks simultaneously - Making roti Shaking No space is remain for easy movements for roti making. In Front of cooking range Easy shaking at right hand side for right handed person. Difficult to shake the roti by left hand for right handed person. At Left side of cooking range At Right side of cooking range Placements of required stuff for roti making activity. SIMILAR ACTIVITIES - Making puranpoli Puri Similar festival food which requires large space on countertop and it is a time consuming process. Tanmayee Palwe | Indian Kitchen | MIT Institute Of Design | 122
  • 123.
    For this activity,space is required for keeping polpat, casserole,oil and atta container. Body Posture while making Roti Tanmayee Palwe | Indian Kitchen | MIT Institute Of Design | 123 440 mm (elbow to elbow distance in max. relax posture) There shoulld be a free cleareanceof 100-150 mm at both elbow sides. So,at left side of cooking range min.650 -700 mm space should be available for easy working
  • 124.
    Tanmayee Palwe |Indian Kitchen | MIT Institute Of Design | 124 Free space for easy working to carried out various cooking activities. 650 - 700 mm
  • 125.
    03 01 Chopping board/ Veli / Knife 02 Plate / Pot 03 Water Chopping Vegetables - 4-5 times in a day REPETATIVE ACTIONS + MORE TIME IS REQUIRED + LESS FORCE (compared to kneading and washing) Tanmayee Palwe | Indian Kitchen | MIT Institute Of Design | 125 It should be carried out at left side or right side of the sink area, depending on the space availibilty.
  • 126.
    04 01 Cleaners 02 Utesilsdrying stand Washing Utensils - Many times in a day Tanmayee Palwe | Indian Kitchen | MIT Institute Of Design | 126 REPETATIVE ACTIONS + FORCE + MORE TIME IS REQUIRED
  • 127.
    Workflow of cookingactivities -(Based on daily required food habits) Generally In indian kitchen following sequence of cooking activities takes place. Making dough Washing rice & pulses Cooking rice Chopping vegetables Cooking vegetables Making Roti Cleaning Tanmayee Palwe | Indian Kitchen | MIT Institute Of Design | 127
  • 128.
    2 80 80 80 80 80 180 110 120 112 168 270 80 96 168 400 112 120 140 100 3 4 56Visited 20 families of members - Area of kitchen in sq.ft - Daily food storage requirement for family of 3/4/5 are quite similar. Min Kitchen area - 80 sq.ft - Max. Kitchen area - 180 sq.ft | 400 sq.ft Tanmayee Palwe | Indian Kitchen | MIT Institute Of Design | 128
  • 129.
    Daily required foodfor 2 meals and breakfast - Food Buying behaviour for family of 3/4/5 members Yearly Monthly Wheat atta Rice Pulses Oil Poha Sugar Spices Bajra, Jowar - as per requirement Tanmayee Palwe | Indian Kitchen | MIT Institute Of Design | 129 3 families 12 families Buying behaviour
  • 130.
    Monthly required foodquantity for 3 members - 3 kg 5 kg 8 kg 2-3 kg 5 kg 8-10 kg 250 gms 500 gms Tanmayee Palwe | Indian Kitchen | MIT Institute Of Design | 130 PulsesRiceWheat
  • 131.
    Monthly required foodquantity for 4 members - 3 kg 5 kg 8-10 kg 2-3 kg 5 kg 8-10 kg 250 gms 500 gms Tanmayee Palwe | Indian Kitchen | MIT Institute Of Design | 131 PulsesRiceWheat
  • 132.
    Monthly required foodquantity for 5 members - 3 kg 5 kg 8-10 kg 2-3 kg 5 kg 8-10 kg 250 gms 500 gms Tanmayee Palwe | Indian Kitchen | MIT Institute Of Design | 132 Wheat Rice Pulses
  • 133.
    Monthly required maximumfood quantity for 3/4/5 members Tanmayee Palwe | Indian Kitchen | MIT Institute Of Design | 133
  • 134.
    Stainless steel AluminiumTupperware/Plastic Container material used for storing Wheat / Rice Container material used for storing Pulses Container form used for storing Pulses Container form used for storing Wheat / Rice Oval Rectangular Stainless steel Aluminium Tupperware/Plastic Oval Rectangular Tanmayee Palwe | Indian Kitchen | MIT Institute Of Design | 134
  • 135.
    For 8 -10kgs Min dia - 8.1/2’’ , 9.1/2” Height - 11’’, 12’’ Max dia - 11”, 11.1/2” Height - 11” ,12” For 5 -7 kgs Min dia - 6.1/2” , 7.1/2”, Height - 8“, 9’’ Max dia - 8” Height - 8” , 9” For 500 gms Dia - 3’’, Height - 5”, 6.1/2“, For 1-2 kgs Dia - 4” , 5” Height - 7.1/2“,8” Container sizes for Pulses (Oval form) After wheat and rice containers, large containers are required for storing Poha, Sugar and oil which are required in a large quantities for the complete month, so the same sizes of containers as above used for 5-7 kgs storage. Container sizes for wheat and rice (Oval form - Research data) Tanmayee Palwe | Indian Kitchen | MIT Institute Of Design | 135
  • 136.
    Tanmayee Palwe |Indian Kitchen | MIT Institute Of Design | 136 Daily utensil requirements - (Based on activities) Cooking - Pans (Different sizes) : 3-4 - Pots (Different sizes) - Cooker (Different sizes) : 1-2 - Kadhai :3-4 - Spoons - Lids Preparation - Spoons - Chopping board/veli - Knives - Pots - Plates/parat Serving - Plates (Different sizes) - Spoons - Bowls (Different sizes) - Glass/Fulpatra/Tambya - Tray - Cup & Saucers General - Khalbatta - Supda(for cleaning grains & peanuts) - Sandashi/Pakkad - Casserole - Strainer - Sifter with different sieves Occasional - Idli steamer - Modak maker - Puranpoli yantra
  • 137.
    Based on workflowof kitchen activities the access to the food is less as compared to utensils. Utensils (requires many times in a day for various precesses)Food (requires only 2-3 times in a day) - Daily required food for 2 meals and breakfast - Wheat atta Rice Pulses Oil Poha Sugar Spices One type of utensil is used for various cooking activities. Cooking Preparation Serving Plate Bowl Spoons Pots - While cooking it requires only once during preparation activity. Tanmayee Palwe | Indian Kitchen | MIT Institute Of Design | 137
  • 138.
    “We can notchange” “We can change” 01 Indivisuals working habits. 02 Work / activities sequence. 03 Buying behaviour 04 Food requirements 05 Utensil requirements 06 Container size / form / material 07 Space availabilty 01 Classification of food containers and kind of utensils based on activities. 02 Positioning of required kitchen stuffs according to activity to reduce movements. (Storage zoning) 03 We can make ideal space available for kitchen activity to perform it in less time and with less energy. Tanmayee Palwe | Indian Kitchen | MIT Institute Of Design | 138 Insights -
  • 139.
    Min. - 80sq.ft Max.- 180 sq.ft Observed areas specifictions - Total volume of kitchen cabinets - Min. - 1.39 m3 Max. - 2.48 m4 2.28 m3 Kitchen area - Volume of kitchen cabinets with minimum space area is quite similar with volume of maximum area indicating similar requirements. Highest volume of cabinet is 2.64 m3 for area of 128sq.ft. Kitchen design / zoning should be for minimum area - 80 sq.ft area Volume can get easily fitted in higher areas - 100/120/150/180 sq.ft areas Tanmayee Palwe | Indian Kitchen | MIT Institute Of Design | 139
  • 140.
    for flat system(small area) sink & hob in one direction is not so much feasible Utesils always should be in RHS (for handy position) Less space remain for preparation Corner can be used to keep utensils stand. Ideations - Tanmayee Palwe | Indian Kitchen | MIT Institute Of Design | 140
  • 141.
    Space for making rotiand other similar activities. Space for chopping/cutting and other preparation. Tanmayee Palwe | Indian Kitchen | MIT Institute Of Design | 141
  • 142.
    Tanmayee Palwe |Indian Kitchen | MIT Institute Of Design | 142
  • 143.
    Tanmayee Palwe |Indian Kitchen | MIT Institute Of Design | 143
  • 144.
    Tanmayee Palwe |Indian Kitchen | MIT Institute Of Design | 144
  • 145.
    Cabinet 1 (Dailyrequired food storage) Cabinet 2 (Daily required utensils storage) Pulses and related food items (container size for 500 gms) Spoons (cooking & serving) Storage for Wheat / Rice / poha / sugar / oil can Storage for Pots / Kadhai / Cooker Small pots Basic storage categoration for primary needs - (with available kitchen grace maximum cabinet sizes) Tanmayee Palwe | Indian Kitchen | MIT Institute Of Design | 145
  • 146.
    Cabinet 3 (Dailyrequired utensils storage) Storage for pans / parat and similar utensils Storage for plates (Small /large) Cylinder cabinet Tanmayee Palwe | Indian Kitchen | MIT Institute Of Design | 146
  • 147.
    Required basic zoningfor primary needs according to workflows of daily activities - 01 Access to food containers is only twice a day. So food storage should be under the cooking range, where women stands maximum of time in front of range. 02 Stoarage for pots / kadhai / cooker and spoons should be next to the food storage at left hand side. 03 Storage of plates/ pans /parat and similar utensil should be near to sink area. 04 For smaller areas range and sink sould not be in one line or atleast there should be enough space to fit both for smooth working on countertop. 05 There should be always small free space at right hand side of the sink to keep utensils stand. Tanmayee Palwe | Indian Kitchen | MIT Institute Of Design | 147
  • 148.
    ( 8’ X10’ ) 10‘ 8’ Tanmayee Palwe | Indian Kitchen | MIT Institute Of Design | 148
  • 149.
    8‘ 10‘ Tanmayee Palwe |Indian Kitchen | MIT Institute Of Design | 149
  • 150.
    10‘8‘ 10’ Tanmayee Palwe |Indian Kitchen | MIT Institute Of Design | 150
  • 151.
  • 152.
    Problem statement1.1 To listout the observed problems in kitchen space and find appropriate method to resolved one of them. Tanmayee Palwe | Indian Kitchen | MIT Institute Of Design | 152 01
  • 153.
    Observed Problems - TanmayeePalwe | Indian Kitchen | MIT Institute Of Design | 153 01) Pan storage are difficult to access (vertical stacking is not a proper solution for storing pans). 02) Difficult to use dustbin which is attached to door with dirty hands. 03) No proper lighting solution for kitchen area. 04) No space to keep/ store big utensils (typical Indian utensils - Parat/sup/Big pots). 05) No provision for ventillation to dustbin door. 06) Somewhere depth of countertop is very less. 07) Problems in accessing corner cabinets which are without magic corner & other accessories. 08) No skirting or gap in the kitchen units provided by carpenters and local kitchen brands, so difficult to access/use while working. 09) No proper storage to keep - . Cutting board veli (Indian chopping board) Polpat + belan Onions/Potatos/Garlic (Which are frequently needed) Broom
  • 154.
    Tanmayee Palwe |Indian Kitchen | MIT Institute Of Design | 154 01 Pan Storage Problem It is very difficult to take a pan which is at bottom in horizontal stacking. 01 Majorly observed area -
  • 155.
    Tanmayee Palwe |Indian Kitchen | MIT Institute Of Design | 155 No Proper storage or accessory for pans 02
  • 156.
    Pan handles getstuck in to the wire mesh which is difficult to remove as a result there is no space for keeping other plates at the handle side.02 Tanmayee Palwe | Indian Kitchen | MIT Institute Of Design | 156
  • 157.
    Lid Storage Problem 01)Lids should always be kept with the Pans for easy accessing. 02) With the rectangular profile wire baskets, lid nobs get stuck in to it and difficult to remove whenever requires. Tanmayee Palwe | Indian Kitchen | MIT Institute Of Design | 157
  • 158.
    Parat Storage Problem TanmayeePalwe | Indian Kitchen | MIT Institute Of Design | 158
  • 159.
    Tanmayee Palwe |Indian Kitchen | MIT Institute Of Design | 159
  • 160.
    There is noas such accssory available for pans storage where we can get easy access to pan. Though wire baskets with adjustment member are available but not to be a good solution to store pans with handles. Higher end market mostly goes for wooden accessories than wire basktes. 01 02 03 Current scenario about storage - Tanmayee Palwe | Indian Kitchen | MIT Institute Of Design | 160
  • 161.
    Pans always shouldbe stored vertically for easy accessing. Pan handle should be in raised position which is easy to access rather than bottom position. 01 02 Key Insights - Tanmayee Palwe | Indian Kitchen | MIT Institute Of Design | 161 Storage should be adjustable to occupy all sizes of pans and parat. 03
  • 162.
    Tanmayee Palwe |Indian Kitchen | MIT Institute Of Design | 162 Refined brief1.2 To design as accessory which serves the purpose for storing pans/lids/parat and other similar utensils with different sizes.
  • 163.
    Min - 25cm,26.5cm, 31cm, 33cm, 35.5cm, 38cm 40cm, Max - 42.5cm 6 - 8 cm deep Parat specification SS Parat Aluminium Parat Brass Parat Tanmayee Palwe | Indian Kitchen | MIT Institute Of Design | 163
  • 164.
    Pan specification Pan dia- Min - 25cm ,26.5cm, 31cm, 33cm, 35.5cm, 38cm 40cm, Max - 42.5cm Total length - Min - 25cm ,26.5cm, 31cm, 33cm, 35.5cm, 38cm 40cm, Max - 42.5cm Pan depth - 5 - 7 cm Total height - 8 - 10 cm Tanmayee Palwe | Indian Kitchen | MIT Institute Of Design | 164
  • 165.
    Lids specification Upper dia- 40mm, 50mm Lower dia - 56mm, 62mm Height - 3 - 4 cm Tanmayee Palwe | Indian Kitchen | MIT Institute Of Design | 165
  • 166.
    INITIAL CONCEPTS Wire framestructure Difficult to take pan which is at bottom Difficult to access 5 - 8 mm deep Not adjustable for large diameter and lenghts Initial problem statement1.3 Tanmayee Palwe | Indian Kitchen | MIT Institute Of Design | 166
  • 167.
    EXISTING SYSTEM FORHORIZONTAL STACKING Hafele base plate organiser Pegs Useful for horizontal stacking Wastage of space Difficult to stack plates vertically Wooden dividers for keeping pots Round post Triangular post Short & long utensils dividers Can not take load Tanmayee Palwe | Indian Kitchen | MIT Institute Of Design | 167
  • 168.
    Creates negative spaces Difficult tostack pans & pots beween these spaces Tanmayee Palwe | Indian Kitchen | MIT Institute Of Design | 168
  • 169.
    Tanmayee Palwe |Indian Kitchen | MIT Institute Of Design | 169
  • 170.
    Tanmayee Palwe |Indian Kitchen | MIT Institute Of Design | 170
  • 171.
    Module to keep- only pans/parat/lids No space remain to keep this 4th plank Tanmayee Palwe | Indian Kitchen | MIT Institute Of Design | 171
  • 172.
    Tanmayee Palwe |Indian Kitchen | MIT Institute Of Design | 172
  • 173.
    Baseplate01 1st module 3rd module 2ndmodule 02 Tanmayee Palwe | Indian Kitchen | MIT Institute Of Design | 173 •••••••••••••••••• 60 [1524] •••••••••••••••••• Dovetail Joi
  • 174.
    2nd module Dovetail jointis given to hold 1st and 3rd module very tightly. Because of Dovetail joint, easy sliding in upward & downward direction, without disturbing the side spaces and modules. 01 02 03 Concept Development Tanmayee Palwe | Indian Kitchen | MIT Institute Of Design | 174
  • 175.
    Dovetail slot isgiven at the end side of each module to add extra modules for supporting the utenisls if required. 04 05 The arrangement of this structure is such a way that the 3rd module can not fall down because of the load of utensils which stacked vertically. Along with the support of dowels this 3rd module can also get the support of these 2 side modules. Tanmayee Palwe | Indian Kitchen | MIT Institute Of Design | 175
  • 176.
    This combined structurecan also save the space on the baseplate. Existing modelRefined model Within single hole 3 modules can get hold on baseplate altogether. Tanmayee Palwe | Indian Kitchen | MIT Institute Of Design | 176 06
  • 177.
    This module isuse as a ‘STOPPER’ for the different sizes of pans and pots with handles. Tanmayee Palwe | Indian Kitchen | MIT Institute Of Design | 177 This profile is used to hold the lid nobs. Base part is used to rest the pan handles in upward direction for easy handling. 07 08
  • 178.
    Tanmayee Palwe |Indian Kitchen | MIT Institute Of Design | 178 Orthographic details PLAN 10 mm thick beech solid wood base plate 150[3810] 90[2286] 61 [1540] dowels vertical supports vertical supports FRONT ELEVATION SIDE ELEVATION PLAN
  • 179.
    610 [15484] 534[13564] •••••••••••••••••• 32[806] 10 mmthick beech solid wood SIDE ELEVATIONFRONT ELEVATION PLAN 10[254] PLAN FRONT ELEVATION SIDE ELEVATION Tanmayee Palwe | Indian Kitchen | MIT Institute Of Design | 179
  • 180.
    135 [3429]151[3826] 135[3429] 85[2159] 50 [1270] 8[199] 8 mm dow PLAN FRONT ELEVATION 12 [305] 12 mm thick beech solid wood ••••••••••••••••• 60 [1524] •••••••••••••••••• 135[3429] Dovetail Joint PLAN 12 [305] 12 mm thick beech solid wood PLAN 12 mm thick beech solid wood 8 mm dowel FRONT ELEVATION Tanmayee Palwe | Indian Kitchen | MIT Institute Of Design | 180
  • 181.
    PLAN FRONT ELEVATION SIDEELEVATION 150[3810] 25 [635] 25 mm thick beech solid wood 25 [635] • • ••• • • • •••••••••• 6 [152]3 [76] 6[152] BLOWN UP DETAIL PLAN FRONT ELEVATION SIDE ELEVATION BLOWN UP DETAIL Tanmayee Palwe | Indian Kitchen | MIT Institute Of Design | 181
  • 182.
    Manufacturing process - TanmayeePalwe | Indian Kitchen | MIT Institute Of Design | 182 159]
  • 183.
    Problems with model- Here requires additional support/module in between 2 pans / lids to prevent from falling after opening/closing of drawer. If we keep support in between two utensils it looks so crowdy and confused system to store. Tanmayee Palwe | Indian Kitchen | MIT Institute Of Design | 183
  • 184.
    Tanmayee Palwe |Indian Kitchen | MIT Institute Of Design | 184 Refined concepts -
  • 185.
    Tanmayee Palwe |Indian Kitchen | MIT Institute Of Design | 185
  • 186.
    Tanmayee Palwe |Indian Kitchen | MIT Institute Of Design | 186
  • 187.
    Tanmayee Palwe |Indian Kitchen | MIT Institute Of Design | 187
  • 188.
    135 [3429] 151[3826] 50 [1270] 8[199] 8 mm dowel FRONT ELEVATION Tanmayee Palwe | Indian Kitchen | MIT Institute Of Design | 188 Concept Development 1 -WIRE FRAME STRUCTURE Profile 1 profile ends are provided with movable and detachable clips So the these modules can be adjusted according to the length and depth of the utensils. 01
  • 189.
    Used for holdinglids nob Act as a stopper for small length utensils. 03 02 Tanmayee Palwe | Indian Kitchen | MIT Institute Of Design | 189
  • 190.
    Profile 2 This profileis used for resting pan handles in raised position for easy accessing. This depth is given,so that handle get stuck and can not be moved. Tanmayee Palwe | Indian Kitchen | MIT Institute Of Design | 190
  • 191.
    Tanmayee Palwe |Indian Kitchen | MIT Institute Of Design | 191
  • 192.
    Orthographic details 1 530 PROFILE1 PROFILE 2 64 286 505 200 SS wire of 2.8 mm diameter Tanmayee Palwe | Indian Kitchen | MIT Institute Of Design | 192 SS wire of 6 mm diameter PLAN FRONT ELEVATION SIDE ELEVATION
  • 193.
    Tanmayee Palwe |Indian Kitchen | MIT Institute Of Design | 193 PLAN FRONT ELEVATION SIDE ELEVATION FRONT ELEVATION 64 286 150 64 125 125 50 50 286 200 16 50 35 476 PROFILE 1 DETAILS PROFILE 2 DETAILS
  • 194.
    Tanmayee Palwe |Indian Kitchen | MIT Institute Of Design |194 Concept Development 2 -WOODEN BASEPLATE STRUCTURE Same modules are used in wooden baseplate and can be adjusted accordingto the depths and length of utensils without using movable clips. Module 1 Module 2
  • 195.
    Orthographic details 1 PROFILE1 16 MM SOLID WOOD PROFILE 2 64 505 286 530 64 Tanmayee Palwe | Indian Kitchen | MIT Institute Of Design | 195 530 505
  • 196.
    Tanmayee Palwe |Indian Kitchen | MIT Institute Of Design | 196 Manufacturing process -
  • 197.
    Tanmayee Palwe |Indian Kitchen | MIT Institute Of Design | 197 Wire frame basket Wooden baseplate system