Wykes Manor
                                                      Grade ii* listed




A HISTORIC GRADE II       Wykes Lane                     DATING FROM THE LATE 17TH
LISTED MANOR HOUSE,                                      CENTURY WITH GRADE II
FORMER HOME OF              Donington Lincs              TRAP HOUSE, FURTHER
THOMAS COWLEY, LOCAL                                     OUTBUILDINGS & GROUNDS
ENTREPRENEUR AND       Grantham 20 miles, London         OF AROUND 1.25 ACRES
FOUNDER OF THE LOCAL   King’s Cross one hour’s high      (0.8 HECTARE) SET IN
SCHOOL. NAMED IN THE                                     PASTORAL SURROUNDINGS
DOMESDAY BOOK &             speed rail journey           WITH THE POSSIBILITY OF

                          £560,000
LISTED IN NICHOLAS                                       RENTAL OF FURTHER
PEVSNER ON                                               ACREAGE
LINCOLNSHIRE.
                               Freehold.
A




          WYKES MANOR
           BACKGROUND & DESCRIPTION
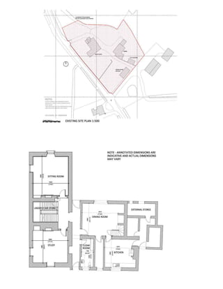
Wykes Manor is an historic Grade II listed manor house
dating back to 1680 with more recent additions. Enjoying
total seclusion in rural South Lincolnshire countryside.
The property retains many fine and original features
                                                             Drawing Room 20’0 x 18’0
centred around the impressive original oak staircase and
inner hall. The drawing room, upstairs withdrawing           Panelled walls, lime washed
rooms and master bedroom all feature fine wall panelling,    boarded flooring. Original
                                                             Victorian fire insert, with  B
and the main reception rooms have triple sash windows
and French doors with window shutters. Other features        impressive moulded surround.
                                                             French doors to the garden and
include deep skirting boards, bolection moulded coving       triple sash window, both with
and open fireplaces to a number of rooms. The                shutters, moulded coving.
accommodation briefly comprises an entrance hall, inner      2 radiators
hall, drawing room, dining room, library, study, kitchen,
pantry and cloakroom on the ground floor. There are
three bedrooms, one with a dressing room/nursery, two
bathrooms and a study on the first floor. The second floor
comprises three further bedrooms. Oil fired central
heating and a security system are installed.

                                                                                         C
Entrance Hall                           B. Lorem ipsum.                       C. Vestibulum quam.
Wide heavy panelled entrance
door, tiled floor light point and
radiator.
Archway into the INNER                          (item # XXXX)   $000.00               (item # XXXX)   $000.00
HALL with magnificent
                                       E. Suspendisse congue.                 F. Nulla quis sem.
original oak staircase to the first   Tristique
floor, natural boarded flooring,
half panelled walls, dado rail,
built-in cloaks cupboard, under
                                                (item # XXXX) $000.00
                                                    (item # XXXX) $000.00             (item # XXXX)   $000.00
stairs cellar area, radiator.




                                                                            Rutrum




                                                                      B                                     C


Donington Wykes is around ¼ mile to the east of Donington, a rural settlement surrounded by open
countryside enjoying tremendous seclusion and privacy. Donington provides an excellent range of local
facilities including shops, primary and secondary schools. library, and a choice of public houses and other
services. The surrounding market towns of Grantham, Sleaford, Bourne, Boston and Spalding are all
within 15 to 20 miles and offer further facilities.

The property is located within a couple of miles of the A52 providing good road communication to the
east and west of the country, with the A1 accessible at Grantham (approx 18 miles) providing excellent
links for the commuter. There is also a superb rail link from Grantham to London King’s Cross which
takes around an hour. This can also be accessed at Peterborough approximately 27 miles to the south

Leaving the centre in an easterly direction pass the school green on your left and turn left immediately into
Badgate. Take the first right continuing along Badgate, which runs into Wykes Lane. Travel for about a
mile out of Donington and the road bends sharply to the right after which Wykes Manor is the first
property on the left hand side.
Drawing Room      20’0 x 18’0 Panelled walls, lime washed boarded flooring. Original
                  Victorian fire insert, with impressive moulded surround. French
                  doors to the garden and triple sash window, both with shutters,
                  moulded coving.




Study     17’1 x 15’9 Moulded fireplace with tiled slips and hearth, triple sash
          window and French doors with window shutters, deep arched recess,
          fitted shelves, dado rail, moulded coving. 2 radiators.
1st Floor Drawing Room/   20’8 x 18’4 Pine panelled walls, decorative cast iron fireplace,
Bedroom                   built in cupboard to recess. 2 radiators




Dining Room        21’4 x 15’9 Solid oak flooring and part quarry tiled floor, deep fireplace
                   with inset wood burning stove set on terracotta tiled hearth, pine panelling
                   to dado height, exposed beams, door to secondary staircase to the study, 2
                   radiators.
Kitchen     15’5 x 14’5 Oil fired Aga, cupboards and drawers with beech block
            work surface over. 1 ½ bowl sink with chrome mixer tap, plumbing
            for automatic washing machine/dishwasher, electric cooker point,
            quarry tiled floor, radiator. Original features include meat hooks in
            the ceiling and a Sheila Maid traditional laundry airer.


Pantry
            14’5 x 4’2 With cold
            slab and fitted
            shelving.


Cloakroom   14’5 x 6’7 With suite
            consisting of close
            coupled WC and
            wash hand basin with
            cupboard beneath,
            shaver point, fitted
            cloaks cupboard,
            radiator.
Bedroom 1




Bedroom 2
Bedroom 4




Dressing Room off Master Bedroom
Guest Room
The gardens extend to around 1.25 acres and offer tremendous
peace and tranquillity. There are formal lawns, a garden area,
vegetable garden with small orchard and large greenhouse.
There is also an attractive pond with adjacent decking and views
over open countryside.

The driveway sweeps round to the rear of the property where
there is an extensive range of outbuildings. The Grade II Listed trap
house – 18’4 x 15’1 adjacent stables 15’1 x 15’1 with original
manger and hay rack, a store 13’1 x 8’10 with grain store area over.
There is a further adjoining barn 15’9 x 12’9=. To the rear of the
trap house is an open fronted barn, old milking parlour and cow
shed / stable, all with electrical supply.

There are also a number of small stores attached to the property
including a boiler house with oil fired central heating boiler, wood
store coal shed and further store with quarry tiled floor.
SERVICES
Mains water and electricity are connected. Drainage is to a private system. Oil fired central
heating is installed, plus a wood burning stove and open fires
COUNCIL TAX
Wykes Manor is in band E for council tax purposes
FIXTURES & FITTINGS
Every effort has been made to omit any fixtures belonging to the vendor in the description of
the property and the property is sold subject to the vendor’s right to the removal of, or payment
for, as the case may be, of any such fittings, etc. whether mentioned in these particulars or not.
All fixtures specifically mentioned in these particulars are included in the sale and the fixtures
normally designated as tenant’s equipment are excluded.
THE PROPERTY MISDESCRIPTIONS ACT 1991
The vendor of this property gives notice that:
    1.      The particulars are set out as a general outline for the guidance of intending
            purchasers and do not constitute, nor constitute part of, an offer or contract.
    2.      All dimensions and areas are approximate.

ebrochure, listed manor house, Lincolnshire, easy reach of London, tranquil, country living, great bargain, ready to move in, ideal country location

  • 1.
    Wykes Manor Grade ii* listed A HISTORIC GRADE II Wykes Lane DATING FROM THE LATE 17TH LISTED MANOR HOUSE, CENTURY WITH GRADE II FORMER HOME OF Donington Lincs TRAP HOUSE, FURTHER THOMAS COWLEY, LOCAL OUTBUILDINGS & GROUNDS ENTREPRENEUR AND Grantham 20 miles, London OF AROUND 1.25 ACRES FOUNDER OF THE LOCAL King’s Cross one hour’s high (0.8 HECTARE) SET IN SCHOOL. NAMED IN THE PASTORAL SURROUNDINGS DOMESDAY BOOK & speed rail journey WITH THE POSSIBILITY OF £560,000 LISTED IN NICHOLAS RENTAL OF FURTHER PEVSNER ON ACREAGE LINCOLNSHIRE. Freehold.
  • 2.
    A WYKES MANOR BACKGROUND & DESCRIPTION Wykes Manor is an historic Grade II listed manor house dating back to 1680 with more recent additions. Enjoying total seclusion in rural South Lincolnshire countryside. The property retains many fine and original features Drawing Room 20’0 x 18’0 centred around the impressive original oak staircase and inner hall. The drawing room, upstairs withdrawing Panelled walls, lime washed rooms and master bedroom all feature fine wall panelling, boarded flooring. Original Victorian fire insert, with B and the main reception rooms have triple sash windows and French doors with window shutters. Other features impressive moulded surround. French doors to the garden and include deep skirting boards, bolection moulded coving triple sash window, both with and open fireplaces to a number of rooms. The shutters, moulded coving. accommodation briefly comprises an entrance hall, inner 2 radiators hall, drawing room, dining room, library, study, kitchen, pantry and cloakroom on the ground floor. There are three bedrooms, one with a dressing room/nursery, two bathrooms and a study on the first floor. The second floor comprises three further bedrooms. Oil fired central heating and a security system are installed. C
  • 3.
    Entrance Hall B. Lorem ipsum. C. Vestibulum quam. Wide heavy panelled entrance door, tiled floor light point and radiator. Archway into the INNER (item # XXXX) $000.00 (item # XXXX) $000.00 HALL with magnificent E. Suspendisse congue. F. Nulla quis sem. original oak staircase to the first Tristique floor, natural boarded flooring, half panelled walls, dado rail, built-in cloaks cupboard, under (item # XXXX) $000.00 (item # XXXX) $000.00 (item # XXXX) $000.00 stairs cellar area, radiator. Rutrum B C Donington Wykes is around ¼ mile to the east of Donington, a rural settlement surrounded by open countryside enjoying tremendous seclusion and privacy. Donington provides an excellent range of local facilities including shops, primary and secondary schools. library, and a choice of public houses and other services. The surrounding market towns of Grantham, Sleaford, Bourne, Boston and Spalding are all within 15 to 20 miles and offer further facilities. The property is located within a couple of miles of the A52 providing good road communication to the east and west of the country, with the A1 accessible at Grantham (approx 18 miles) providing excellent links for the commuter. There is also a superb rail link from Grantham to London King’s Cross which takes around an hour. This can also be accessed at Peterborough approximately 27 miles to the south Leaving the centre in an easterly direction pass the school green on your left and turn left immediately into Badgate. Take the first right continuing along Badgate, which runs into Wykes Lane. Travel for about a mile out of Donington and the road bends sharply to the right after which Wykes Manor is the first property on the left hand side.
  • 4.
    Drawing Room 20’0 x 18’0 Panelled walls, lime washed boarded flooring. Original Victorian fire insert, with impressive moulded surround. French doors to the garden and triple sash window, both with shutters, moulded coving. Study 17’1 x 15’9 Moulded fireplace with tiled slips and hearth, triple sash window and French doors with window shutters, deep arched recess, fitted shelves, dado rail, moulded coving. 2 radiators.
  • 5.
    1st Floor DrawingRoom/ 20’8 x 18’4 Pine panelled walls, decorative cast iron fireplace, Bedroom built in cupboard to recess. 2 radiators Dining Room 21’4 x 15’9 Solid oak flooring and part quarry tiled floor, deep fireplace with inset wood burning stove set on terracotta tiled hearth, pine panelling to dado height, exposed beams, door to secondary staircase to the study, 2 radiators.
  • 6.
    Kitchen 15’5 x 14’5 Oil fired Aga, cupboards and drawers with beech block work surface over. 1 ½ bowl sink with chrome mixer tap, plumbing for automatic washing machine/dishwasher, electric cooker point, quarry tiled floor, radiator. Original features include meat hooks in the ceiling and a Sheila Maid traditional laundry airer. Pantry 14’5 x 4’2 With cold slab and fitted shelving. Cloakroom 14’5 x 6’7 With suite consisting of close coupled WC and wash hand basin with cupboard beneath, shaver point, fitted cloaks cupboard, radiator.
  • 7.
  • 8.
    Bedroom 4 Dressing Roomoff Master Bedroom
  • 9.
  • 13.
    The gardens extendto around 1.25 acres and offer tremendous peace and tranquillity. There are formal lawns, a garden area, vegetable garden with small orchard and large greenhouse. There is also an attractive pond with adjacent decking and views over open countryside. The driveway sweeps round to the rear of the property where there is an extensive range of outbuildings. The Grade II Listed trap house – 18’4 x 15’1 adjacent stables 15’1 x 15’1 with original manger and hay rack, a store 13’1 x 8’10 with grain store area over. There is a further adjoining barn 15’9 x 12’9=. To the rear of the trap house is an open fronted barn, old milking parlour and cow shed / stable, all with electrical supply. There are also a number of small stores attached to the property including a boiler house with oil fired central heating boiler, wood store coal shed and further store with quarry tiled floor.
  • 15.
    SERVICES Mains water andelectricity are connected. Drainage is to a private system. Oil fired central heating is installed, plus a wood burning stove and open fires COUNCIL TAX Wykes Manor is in band E for council tax purposes FIXTURES & FITTINGS Every effort has been made to omit any fixtures belonging to the vendor in the description of the property and the property is sold subject to the vendor’s right to the removal of, or payment for, as the case may be, of any such fittings, etc. whether mentioned in these particulars or not. All fixtures specifically mentioned in these particulars are included in the sale and the fixtures normally designated as tenant’s equipment are excluded. THE PROPERTY MISDESCRIPTIONS ACT 1991 The vendor of this property gives notice that: 1. The particulars are set out as a general outline for the guidance of intending purchasers and do not constitute, nor constitute part of, an offer or contract. 2. All dimensions and areas are approximate.