ANALISA
TAPAK
ALAM SUTERA ADALAH SUATU KAWASAN BARU YANG
TERLETAK DI KOTA TANGERANG YANG TERUS
BERKEMBANG BAIK DARI SEGI KEBUTUHAN
PENYEDIAAN KOMPLEK PERUMAHAN MAUPUN
KEGIATAN BISNIS. PERANCANGAN BANGUNAN
DENGAN SARANA MEETING, INCENTIVE,
CONFERENCE, EXIHIBITION ATAU DISEBUT M.I.C.E INI
DIHARAPKAN MAMPU MENJAWAB TANTANGAN
KEBUTUHAN BANGUNAN KOMERSIL DENGAN SEGALA
FASILITAS PENUNJANG YANG SEKALIGUS MAMPU
MENJADI ICON BARU KAWASAN ALAM SUTERA.
ANALIS
A
MAKRO
LOKASI SITE
PERENCANAAN
LOKASI SITE YANG BERADA DALAM
TATA GUNA LAHAN SEBAGAI KAWASAN
KOMERSIL. DENGAN DI DUKUNG
KEBERADAAN BEBERAPA BANGUNAN
EXISTING DI SEKITARNYA YANG
SUDAH LEBIH DULU MENGHIDUPKAN
DENYUT PEREKONOMIAN DAN BISNIS
INI DIHARAPKAN BANGUNAN M.I.C.E
MAMPU MENJADI BAGIAN DARI CITRA
KAWASAN YANG SUDAH TERBENTUK.
ANALISA
MEZZO
THE PROMINENCE TOWER
BINUS UNIVERSITY
SRIKANDI DIAMOND MOTORS
SILKWOOD RESIDENCE
MALL @ ALAM SUTERASYNERGY BUILDING
LOKASI SITE
PERENCANAAN
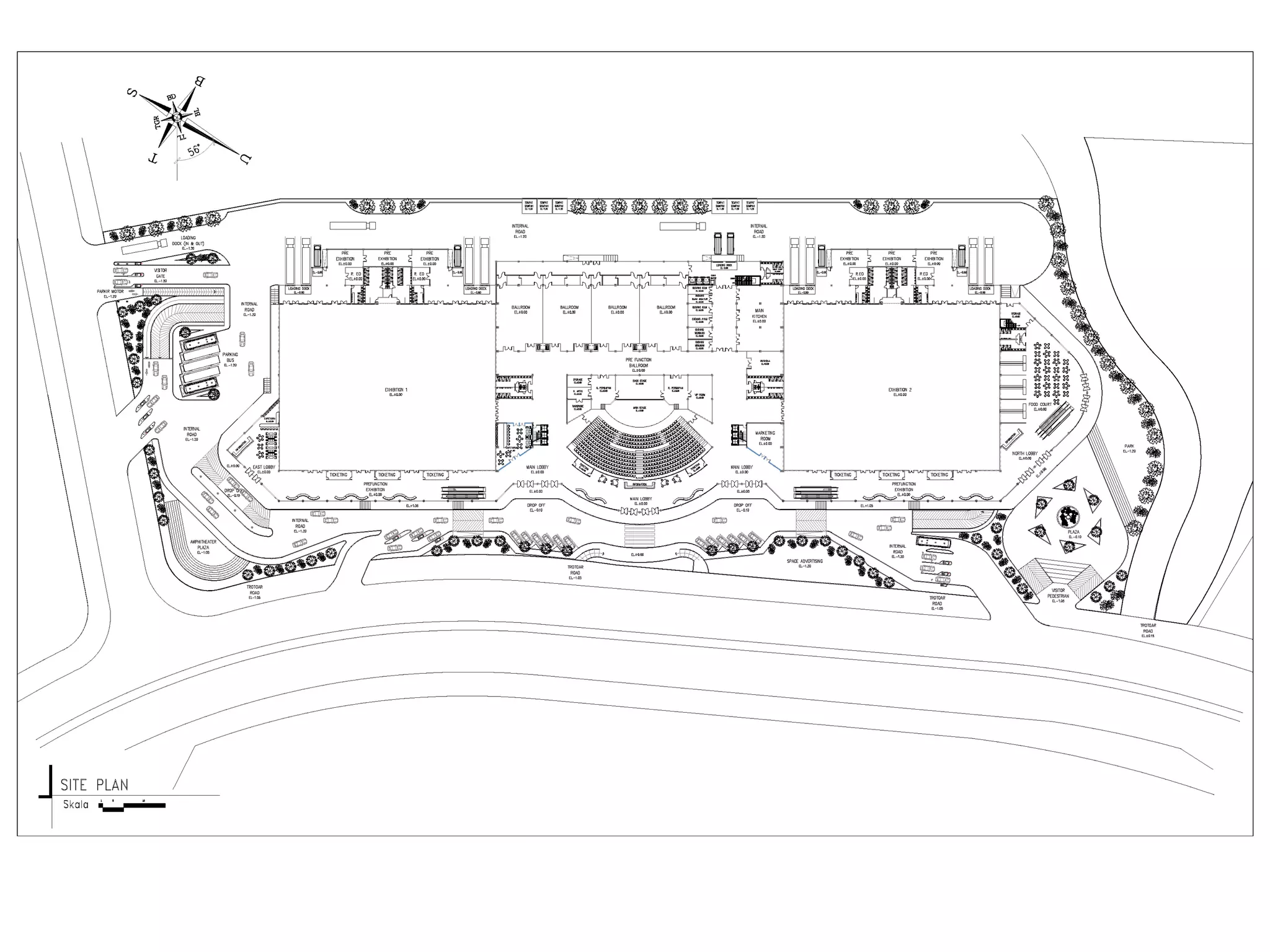
LOKASI SITE PERENCANAAN BERADA PADA LAHAN DENGAN KAWASAN KOMERSIL DINILAI SANGAT STRATEGIS UNTUK MENGHADIRKAN
BANGUNAN M.I.C.E CENTER DENGAN TEMA PERANCANGAN “WILD AND ICONIC” DENGAN LUAS LAHAN YANG TERSEDIA 40000 m2 (4 Ha)
DAN BATAS TAPAK SEBAGAI BERIKUT,
UTARA : DANAU BUATAN. SELATAN : JL. ALAM UTAMA. TIMUR : JL. SUTERA BOULEVARD. BARAT : `KAVLING KOMPLEK PERUMAHAN.
ANALISA
MIKRO
SITE PERENCANAAN DALAM TATA GUNA LAHAN SEBAGAI KAVLING KOMERSIL MERUJUK
DARI MASTER PLAN PENGEMBANG DENGAN DATA TAPAK SEBAGAI BERIKUT :
LUAS LAHAN = 40.000 m2 (4Ha).
LUAS SITE PERENCANAAN = 36.676 m2.
KOEFISIEN DASAR BANGUNAN 60%= 24.000 m2.
KOEFISIEN LUAS BANGUNAN 1,2 = 48.000 m2.
KOEFISIEN DAERAH HIJAU 20% = 8000 m2.
KOEFISIEN TINGGI BANGUNAN = 4 LANTAI.
ANALISA
TATA
WILAYA
H DAN
UKURAN
.
10 m
SITE AREA
GSB
JL. SUTERA BOULEVARD
ANALISA
POLA
SIKULAS
I DI
SEKITAR
TAPAK
SITE AREA
TRAFIK LALU LINTAS
KENDARAAN PADA JALAN
INI CUKUP PADAT KARENA
JALAN SUTERA
BOULEVARD BERPERAN
SEBAGAI JALAN UTAMA.
TRAFIK LALU LINTAS
KENDARAAN PADA JALAN
INI SEDANG KARENA JALAN
ALAM UTAMA MERUPAKAN
AKSES DARI KOMPLEK
PERUMAHAN.
SUTERA LOOP MEMILIKI EMPAT RUTE YANG
MENJANGKAU HAMPIR KE SELURUH
KAWASAN. BLUE LINE, RED LINE, YELLOW LINE,
DAN GREEN LINE. DI AWALI DARI HALTE FLAVOR
BLISS, SUTERA LOOP MENGHUBUNGKAN KAWASAN
RESIDENSIAL HINGGA KOMERSIAL DI ALAM SUTERA.
MENYEDIAKAN AKSES
ENTRANCE BAGI
PEJALAN KAKI
AREA INI DI PROYEKSIKAN
SEBAGAI ENTRANCE UNTUK
MENGCOVER TRAFIK DARI
ARAH KOMPLEK PERUMAHAN
POLA
SIRKULASI
PEJALAN
KAKI DI
SEKITAR
TAPAK
AREA INI DI PROYEKSIKAN SEBAGAI ENTRANCE UNTUK
MENGCOVER TRAFIK DARI JALAN UTAMA DAN
MENJAUHI PERTIGAAN GUNA MENGHINDARI
KEMACETAN
AREA INI DI PROYEKSIKAN
SEBAGAI AKSES KELUAR
LANGSUNG KE JALAN UTAMA
MENYEDIAKAN AKSES
PEJALAN KAKI UNTUK
MENGAKSES SITE DI
KARENAKAN BERDEKATAN
DENGAN HALTE EKISTING
URBAN LOOP.
MENYEDIAKAN AKSES
ENTRANCE BAGI
PEJALAN KAKI
ANALISA KEBISINGAN
SITE AREA
KEBISINGAN BERTINGKAT CUKUP
TINGGI BERASAL DARI JALUR UTAMA
LALU LINTAS YANG PADAT.
KEBISINGAN BERTINGKAT
SEDANG TERJADI DI
TRAFFIK LALU LINTAS
YANG TIDAK BEGITU
PADAT.
DI PROYEKSIKAN TERDAPAT PAGAR TANAMAN SEBAGAI
BUFER TINGKAT KEBISINGAN YANG BERAGAM SERTA
SCUPLTURE DENGAN DESAIN TERTENTU YANG BERFUNGSI
MEMANTULKAN SUARA KEBISINGAN. DAN DIDUKUNG DENGAN
PENGOLAHAN BENTUK FASAD YANG KEDAP SUARA.
ANALISA VIEW DARI TAPAK
SITE AREAVIEW SEBELAH SELATAN DI
PROYEKSIKAN SEBAGAI
DERETAN BANGUNAN
RUKO KOMERSIL. VIEW
BANGUNAN PADA SISI INI
DIHARAPKAN DAPAT
MENARIK PERHATIAN .
VIEW DI SEBELAH BARAT SEBUAH KAVLING KOMPLEK
PERUMAHAN. VIEW DARI SISI INI DIRASA COCOK
UNTUK AREA LOADING DAN SERVIS.
VIEW SEBELAH TIMUR SEBUAH KAVLING
KOMERSIL YANG TERDAPAT BEBERAPA
BANGUNAN EXISTING . VIEW DARI SISI INI
HARUS MAMPU MENUNJUKAN CITRA
BANGUNAN YANG INGIN DI TAMPILKAN
SERTA MENJADI SALAH SATU ICONIC
SUATU KAWASAN.
VIEW SEBELAH UTARA
TERDAPAT DANAU BUATAN YANG
MENJADI RUANG PUBLIK . VIEW
DI SISI INI BISA DIMANFAATKAN
SEBAGAI RUANG TERBUKA
KOMERSIL MAUPUN PLAZA
SEBAGAI RUANG PENUNJANG
BANGUNAN
ANALISA TAUTAN LINGKUNGAN
SITE AREA
TERDAPAT DANAU BUATAN
AMPHITHEATER SEBAGAI
RUANG PUBLIK
KAVLING KOMERSIL
KAVLING KOMERSIL
ARAH ALIRAN PERMUKAN
MENUJU KE DAERAH YANG
TERRENDAH
PROPOSED
DRAINASE
TERTUTUP
PROPOSED DRAINASE
TERTUTUP
KEBERADAAN BERBAGAI FASILITAS YANG SUDAH TERBENTUK MENAMBAH KEISTIMEWAAN
TAPAK YANG DAPAT DIMANFAATKAN DAN MENDUKUNG PERANCANGAN.
ANALISA ARAH ANGIN
SITE AREA
PADA BULAN
DESEMBERL – APRIL
TEKANAN UDARA
RENDAH DI BENUA
ASIA DAN PUSAT
TEKANAN TINGGI DI
BENUA AUSTRALIA
MENYEBABKAN ANGIN
BERHEMBUS DARI
BARAT LAUT MENUJU
TENGGARA ANGIN INI
DIKENAL DENGAN
ANGIN MUSON BARAT.
ANGIN INI MEMBAWA
CURAH HUJAN.
PADA BULAN APRIL –
OKTOBER TEKANAN
UDARA RENDAH DI
BENUA ASIA DAN
PUSAT TEKANAN
TINGGI DI BENUA
AUSTRALIA
MENYEBABKAN ANGIN
BERHEMBUS DARI
TENGGARA MENUJU
BARAT LAUT ANGIN INI
DIKENAL DENGAN
ANGIN MUSON TIMUR.
BIASANYA ANGIN INI
BERSIFAT KERING
(KEMARAU)
PADA AREA INI DI BUAT PLAZA TERBUKA GUNA MEMBIARKAN ANGIN
MENERPA MASSA DAN SEBAGAI PENGHAWAAN DI AREA BAGIAN LUAR
ANALISA PERGERAKAN MATAHARI
SITE AREA
MATAHARI
TERBENAM
PADA FASAD DEPAN DI PASANG SUN
SCREEN UNTUK MENGURANGI TERIK DARI
CAHAYA MATAHARI NAMUN TETAP
MEMBERIKAN BUKAAN YANG CUKUP
UNTUK PENCAHAYAAN ALAMI DI DALAM
RUANGAN
MATAHARI
TERBIT
MATAHARI
TERIK
PADA AREA INI DI
PROYEKSIKAN SEBAGAI
AREA LOADING
PADA AREA RUANGAN DALAM
DIPROYEKSIKAN TERDAPAT SKY
LIGHT UNTUK PENCAHAYAAN
ALAMI DI DALAM RUANGAN.
PADA AREA INI LEBIH BANYAK
DITANAMI POHON PENEDUH.
SELAIN SEBAGAI NAUNGAN DARI
CAHAYA MATAHARI JUGA
SEBAGAI PEMBENTUK
LANDSCAPE
PROSES
DESAIN
KONSE
P
DRAWIN
G
TERIMA KASIH

Design M.I.C.E Building.

  • 2.
  • 3.
    ALAM SUTERA ADALAHSUATU KAWASAN BARU YANG TERLETAK DI KOTA TANGERANG YANG TERUS BERKEMBANG BAIK DARI SEGI KEBUTUHAN PENYEDIAAN KOMPLEK PERUMAHAN MAUPUN KEGIATAN BISNIS. PERANCANGAN BANGUNAN DENGAN SARANA MEETING, INCENTIVE, CONFERENCE, EXIHIBITION ATAU DISEBUT M.I.C.E INI DIHARAPKAN MAMPU MENJAWAB TANTANGAN KEBUTUHAN BANGUNAN KOMERSIL DENGAN SEGALA FASILITAS PENUNJANG YANG SEKALIGUS MAMPU MENJADI ICON BARU KAWASAN ALAM SUTERA. ANALIS A MAKRO LOKASI SITE PERENCANAAN
  • 4.
    LOKASI SITE YANGBERADA DALAM TATA GUNA LAHAN SEBAGAI KAWASAN KOMERSIL. DENGAN DI DUKUNG KEBERADAAN BEBERAPA BANGUNAN EXISTING DI SEKITARNYA YANG SUDAH LEBIH DULU MENGHIDUPKAN DENYUT PEREKONOMIAN DAN BISNIS INI DIHARAPKAN BANGUNAN M.I.C.E MAMPU MENJADI BAGIAN DARI CITRA KAWASAN YANG SUDAH TERBENTUK. ANALISA MEZZO THE PROMINENCE TOWER BINUS UNIVERSITY SRIKANDI DIAMOND MOTORS SILKWOOD RESIDENCE MALL @ ALAM SUTERASYNERGY BUILDING LOKASI SITE PERENCANAAN
  • 5.
    LOKASI SITE PERENCANAANBERADA PADA LAHAN DENGAN KAWASAN KOMERSIL DINILAI SANGAT STRATEGIS UNTUK MENGHADIRKAN BANGUNAN M.I.C.E CENTER DENGAN TEMA PERANCANGAN “WILD AND ICONIC” DENGAN LUAS LAHAN YANG TERSEDIA 40000 m2 (4 Ha) DAN BATAS TAPAK SEBAGAI BERIKUT, UTARA : DANAU BUATAN. SELATAN : JL. ALAM UTAMA. TIMUR : JL. SUTERA BOULEVARD. BARAT : `KAVLING KOMPLEK PERUMAHAN. ANALISA MIKRO
  • 6.
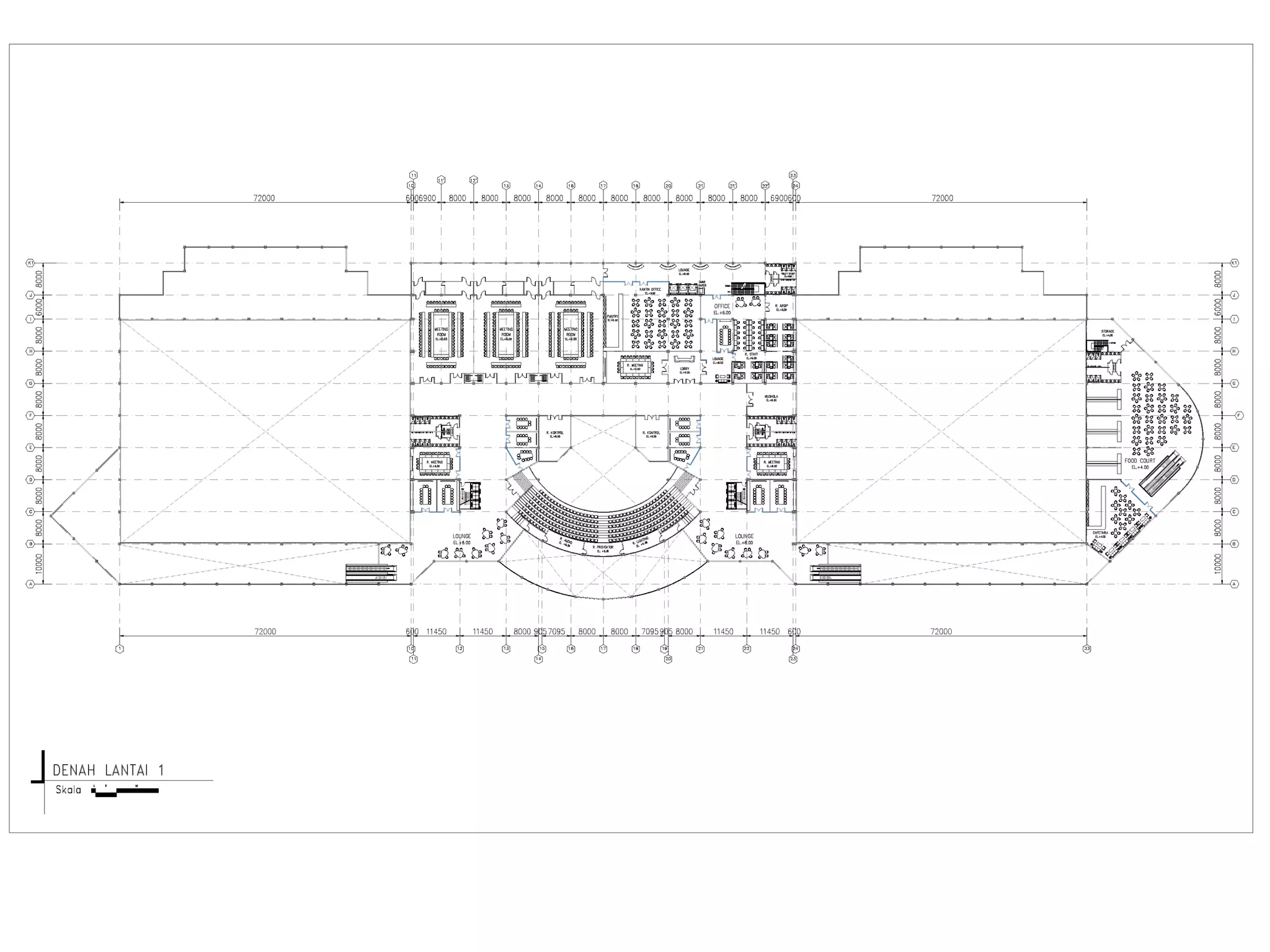
    SITE PERENCANAAN DALAMTATA GUNA LAHAN SEBAGAI KAVLING KOMERSIL MERUJUK DARI MASTER PLAN PENGEMBANG DENGAN DATA TAPAK SEBAGAI BERIKUT : LUAS LAHAN = 40.000 m2 (4Ha). LUAS SITE PERENCANAAN = 36.676 m2. KOEFISIEN DASAR BANGUNAN 60%= 24.000 m2. KOEFISIEN LUAS BANGUNAN 1,2 = 48.000 m2. KOEFISIEN DAERAH HIJAU 20% = 8000 m2. KOEFISIEN TINGGI BANGUNAN = 4 LANTAI. ANALISA TATA WILAYA H DAN UKURAN . 10 m SITE AREA GSB JL. SUTERA BOULEVARD
  • 7.
    ANALISA POLA SIKULAS I DI SEKITAR TAPAK SITE AREA TRAFIKLALU LINTAS KENDARAAN PADA JALAN INI CUKUP PADAT KARENA JALAN SUTERA BOULEVARD BERPERAN SEBAGAI JALAN UTAMA. TRAFIK LALU LINTAS KENDARAAN PADA JALAN INI SEDANG KARENA JALAN ALAM UTAMA MERUPAKAN AKSES DARI KOMPLEK PERUMAHAN. SUTERA LOOP MEMILIKI EMPAT RUTE YANG MENJANGKAU HAMPIR KE SELURUH KAWASAN. BLUE LINE, RED LINE, YELLOW LINE, DAN GREEN LINE. DI AWALI DARI HALTE FLAVOR BLISS, SUTERA LOOP MENGHUBUNGKAN KAWASAN RESIDENSIAL HINGGA KOMERSIAL DI ALAM SUTERA. MENYEDIAKAN AKSES ENTRANCE BAGI PEJALAN KAKI AREA INI DI PROYEKSIKAN SEBAGAI ENTRANCE UNTUK MENGCOVER TRAFIK DARI ARAH KOMPLEK PERUMAHAN POLA SIRKULASI PEJALAN KAKI DI SEKITAR TAPAK AREA INI DI PROYEKSIKAN SEBAGAI ENTRANCE UNTUK MENGCOVER TRAFIK DARI JALAN UTAMA DAN MENJAUHI PERTIGAAN GUNA MENGHINDARI KEMACETAN AREA INI DI PROYEKSIKAN SEBAGAI AKSES KELUAR LANGSUNG KE JALAN UTAMA MENYEDIAKAN AKSES PEJALAN KAKI UNTUK MENGAKSES SITE DI KARENAKAN BERDEKATAN DENGAN HALTE EKISTING URBAN LOOP. MENYEDIAKAN AKSES ENTRANCE BAGI PEJALAN KAKI
  • 8.
    ANALISA KEBISINGAN SITE AREA KEBISINGANBERTINGKAT CUKUP TINGGI BERASAL DARI JALUR UTAMA LALU LINTAS YANG PADAT. KEBISINGAN BERTINGKAT SEDANG TERJADI DI TRAFFIK LALU LINTAS YANG TIDAK BEGITU PADAT. DI PROYEKSIKAN TERDAPAT PAGAR TANAMAN SEBAGAI BUFER TINGKAT KEBISINGAN YANG BERAGAM SERTA SCUPLTURE DENGAN DESAIN TERTENTU YANG BERFUNGSI MEMANTULKAN SUARA KEBISINGAN. DAN DIDUKUNG DENGAN PENGOLAHAN BENTUK FASAD YANG KEDAP SUARA.
  • 9.
    ANALISA VIEW DARITAPAK SITE AREAVIEW SEBELAH SELATAN DI PROYEKSIKAN SEBAGAI DERETAN BANGUNAN RUKO KOMERSIL. VIEW BANGUNAN PADA SISI INI DIHARAPKAN DAPAT MENARIK PERHATIAN . VIEW DI SEBELAH BARAT SEBUAH KAVLING KOMPLEK PERUMAHAN. VIEW DARI SISI INI DIRASA COCOK UNTUK AREA LOADING DAN SERVIS. VIEW SEBELAH TIMUR SEBUAH KAVLING KOMERSIL YANG TERDAPAT BEBERAPA BANGUNAN EXISTING . VIEW DARI SISI INI HARUS MAMPU MENUNJUKAN CITRA BANGUNAN YANG INGIN DI TAMPILKAN SERTA MENJADI SALAH SATU ICONIC SUATU KAWASAN. VIEW SEBELAH UTARA TERDAPAT DANAU BUATAN YANG MENJADI RUANG PUBLIK . VIEW DI SISI INI BISA DIMANFAATKAN SEBAGAI RUANG TERBUKA KOMERSIL MAUPUN PLAZA SEBAGAI RUANG PENUNJANG BANGUNAN
  • 10.
    ANALISA TAUTAN LINGKUNGAN SITEAREA TERDAPAT DANAU BUATAN AMPHITHEATER SEBAGAI RUANG PUBLIK KAVLING KOMERSIL KAVLING KOMERSIL ARAH ALIRAN PERMUKAN MENUJU KE DAERAH YANG TERRENDAH PROPOSED DRAINASE TERTUTUP PROPOSED DRAINASE TERTUTUP KEBERADAAN BERBAGAI FASILITAS YANG SUDAH TERBENTUK MENAMBAH KEISTIMEWAAN TAPAK YANG DAPAT DIMANFAATKAN DAN MENDUKUNG PERANCANGAN.
  • 11.
    ANALISA ARAH ANGIN SITEAREA PADA BULAN DESEMBERL – APRIL TEKANAN UDARA RENDAH DI BENUA ASIA DAN PUSAT TEKANAN TINGGI DI BENUA AUSTRALIA MENYEBABKAN ANGIN BERHEMBUS DARI BARAT LAUT MENUJU TENGGARA ANGIN INI DIKENAL DENGAN ANGIN MUSON BARAT. ANGIN INI MEMBAWA CURAH HUJAN. PADA BULAN APRIL – OKTOBER TEKANAN UDARA RENDAH DI BENUA ASIA DAN PUSAT TEKANAN TINGGI DI BENUA AUSTRALIA MENYEBABKAN ANGIN BERHEMBUS DARI TENGGARA MENUJU BARAT LAUT ANGIN INI DIKENAL DENGAN ANGIN MUSON TIMUR. BIASANYA ANGIN INI BERSIFAT KERING (KEMARAU) PADA AREA INI DI BUAT PLAZA TERBUKA GUNA MEMBIARKAN ANGIN MENERPA MASSA DAN SEBAGAI PENGHAWAAN DI AREA BAGIAN LUAR
  • 12.
    ANALISA PERGERAKAN MATAHARI SITEAREA MATAHARI TERBENAM PADA FASAD DEPAN DI PASANG SUN SCREEN UNTUK MENGURANGI TERIK DARI CAHAYA MATAHARI NAMUN TETAP MEMBERIKAN BUKAAN YANG CUKUP UNTUK PENCAHAYAAN ALAMI DI DALAM RUANGAN MATAHARI TERBIT MATAHARI TERIK PADA AREA INI DI PROYEKSIKAN SEBAGAI AREA LOADING PADA AREA RUANGAN DALAM DIPROYEKSIKAN TERDAPAT SKY LIGHT UNTUK PENCAHAYAAN ALAMI DI DALAM RUANGAN. PADA AREA INI LEBIH BANYAK DITANAMI POHON PENEDUH. SELAIN SEBAGAI NAUNGAN DARI CAHAYA MATAHARI JUGA SEBAGAI PEMBENTUK LANDSCAPE
  • 13.
  • 16.
  • 18.
  • 45.