CMET 5130: BUILDING INFORMATION MODELLING
FINAL GROUP PROJECT PRESENTATION OF
LANGTREE BUILDING 19AB
-Group 5
Koushik Narra
Sai Sri Harsha Namana
Abhishek D. Malode
AGENDA
Developing Architectural Model.
Structural Model.
Mechanical Model.
Electrical Model.
Plumbing Model.
Clash Detection.
Quantity Takeoff.
Project Scheduling.
4D Simulation.
Energy Simulation.
Walkthrough.
INDIVIDUAL CONTRIBUTIONS
Architectural
Structural
Mechanical
Electrical
Plumbing
Clash Detection
Quantity Takeoff
Project Scheduling
4d Simulation
Energy Simulation
Walkthrough
DEVELOPING ARCHITECTURAL MODEL.
BACK 3-D
PLACING INTERIOR COMPONENTS
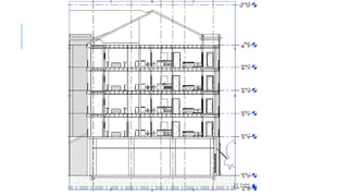
SECTIONAL VIEWS
STRUCTURAL MODEL
MECHANICAL MODEL
Open a new file (system default)
Link it to our existing Architectural and Structural Model (origin to origin).
Create Levels.
Import Necessary Components.
MECHANICAL PLAN: ELEVATION
LEVEL 1 MECHANICAL PLAN
LEVEL 2 MECHANICAL PLAN
MECHANICAL: 3D VIEW
ELECTRICAL MODEL
Open new file(electrical default)
Link it to our existing Architectural and Structural Model (origin to origin).
Create Levels.
Import Necessary Components.
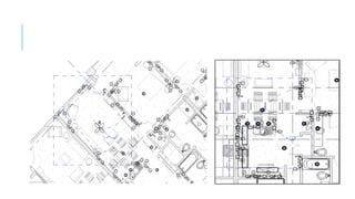
ELECTRICAL
ELECTRICAL DETAILS
PLUMBING MODEL
Open new file(plumbing default)
Link it to our existing Architectural and Structural Model (origin to origin).
Create Levels.
Import Necessary Components.
PLUMBING
PLUMBING: ELEVATION VIEW
PLUMBING: 3D VIEW
CLASH DETECTION: P VS M
ELECTRIC VS PLUMBING
PLUMBING VS ARCHITECTURAL- STRUCTURAL
QUANTITY TAKE-OFF
Export file to dwf/dwfx
Used Autodesk Quantity Take-off to calculate quantities
Used RSMeans Online for knowing costs.
The approximate cost for our project is $3.36 million.
Created A Report.
REPORT
PROJECT SCHEDULING
4D SIMULATION
Export revit file to nwc format
Open manage 2014
Append nwc file
Select orderly, link it with schedule and simulate
ENERGY SIMULATION
Annual Energy Cost: $56,011
Water Usage: 2.9 Million gallons per year and Cost is $18,192
Due to the electric usage a total of 434.5 tons of CO2 emissions is expected per
year which is equivalent to using 48.4 SUVs/year.
WALKTHROUGH
DIFFICULTIES FACED WHILE WORKING
Modelling the Roof.
Placing of the Exterior Walls.
Mechanical: 45 Degree Tilt of Building.
Components Downloaded from RevitCity is difficult to edit.
FUTURE USE?
Yes, Definitely.
Why?
How?
COMPARISON

BIM ppt