Средняя общеобразовательная школа на 800 учащихся в жилом
районе «Прибрежный» (37 микрорайон)
ПОЯСНИТЕЛЬНАЯ ЗАПИСКА
Здание запроектировано 3-х этажным с подвалом, имеет внутренний двор и пристроенный спортзал.
Размеры здания в осях 61.7м х 59,3м, спортзала в осях 30,4м х 18м.
Школа рассчитана на 800 учащихся. Здание имеет 2 входные группы.
Учебные кабинеты расположены по наружному периметру здания, что обеспечивает необходимую инсоляцию и
достаточную естественную освещенность.
В здание запроектирован подъемник для инвалидов и санузлы для маломобильных групп населения.
На первом этаже расположены классы начальной школы (1-ые классы), кабинеты трудового обучения, медицинский блок.
В северо-зепедной части здания расположен пищеблок с обеденным залом и блок вспомогательных помещений при
спортзале (раздевалки, снарядная, кабинет инструктора физкультуры).
На втором этаже расположены классы начальной школы (2-4 классы), актовый зал, кабинеты русского языка кабинеты
татарского языка, иностранных языков, математики, биологии, кабинет директора и учительские.
На третьем этаже расположены библиотека с читальным залом, кабинеты математики, химии, физики, кабинеты географии,
черчения и ИЗО, компьютерные классы.
В подвале расположены венткамеры, электрощитовая, помещения водомерного узла, насосная.
В отделке фасадов применен навесной вентилируемый фасад из керамогранитных плиток разных цветов.
ТЭПЫ
Общая площадь здания - 11449,00 кв. м., в т.ч.:
Площадь первого этажа - 2796,81 кв. м.
Площадь второго этажа - 2661,16 кв. м.
Площадь третьего этажа - 2661,16 кв. м.
Площадь спортзала - 547,24 кв. м.
Площадь подвала - 2784,92 кв. м.
Площадь застройки - 3909,12 кв. м.,
Площадь кровли - 3550,87 кв. м.
Строительный объем - 51805,3 куб. м.,
в том числе объем подвала - 7721,5 куб. м.
Средняя общеобразовательная школа в жилом районе
«Прибрежный» (37 микрорайон) на 800 учащихся.
Пояснительная записка.
Средняя общеобразовательная школа в жилом районе «Прибрежный»
(37 микрорайон) на 800 учащихся.
Фотофиксация существ. состояния места пректирования. Ситуационный план.
Въезд на территорию
жилого дома
Въезд на территорию
детского сада
Средняя общеобразовательная школа в жилом районе
«Прибрежный» (37 микрорайон) на 800 учащихся.
Видовой кадр 1.
Средняя общеобразовательная школа в жилом районе
«Прибрежный» (37 микрорайон) на 800 учащихся.
Видовой кадр 2.
Средняя общеобразовательная школа в жилом районе
«Прибрежный» (37 микрорайон) на 800 учащихся.
Видовой кадр 3.
Средняя общеобразовательная школа в жилом районе
«Прибрежный» (37 микрорайон) на 800 учащихся.
Фотомонтаж.
-1,740
+12,900
+9,100
+5,100
0,000
+12,900
+0,900
+2,700
+4,800
+6,600
+8,700
+10,500
0,000
+12,900
+0,900
+2,700
+4,800
+6,600
+8,700
+10,500
0,000
+12,900
1 227
НА Л
7
4
8
3
11
6
1068
11
9
7
10
11
8
9 7 10 6
10
Сэндвич-панели, RAL 1013
керамогранитная плитка
600 мм,x600
цвет - оранжево-персиковый
(UF017R)
1
2
3
6
8
Сэндвич-панели, 7RAL 200
Сэндвич-панели, 17RAL 60
керамогранитная плитка
600 мм,x600
цвет - фисташковый (UF022R)
7
9
керамогранитная плитка
600 мм,x600
цвет - белый (UF001R)
10
4 Сэндвич-панели, 3003RAL
5 Сэндвич-панели, 3005RAL
керамогранитная плитка
600 мм,x600
цвет - красный (UF023R)
Примечание:
1. Индивидуальные витражи выполнить из алюминиевых
профилей - цвет 9007.RAL
2. Сварные ограждения окрасить полимерно-порошковой
краской в заводских условиях - 9007.RAL
Средняя общеобразовательная школа в жилом районе
«Прибрежный» (37 микрорайон) на 800 учащихся.
Цветовое решение фасадов. Фасад 1-22, А-Н.
7
8
керамогранитная плитка
600 мм,x600
цвет - малиновый (UF012R)
5
1
10
3
5
2
11
цоколь - керамогранитная плитка
600 мм на клею,x600
цвет - фисташковый (UF022R)
11
10 10
Сэндвич-панели, RAL 1013
навесной вентилируемый фасад
из керамогранита 600 мм,x600
цвет - оранжево-персиковый
(UF017R)
0,000
+12,900
+5,100
-1,740
Примечание:
1. Индивидуальные витражи выполнить из алюминиевых
профилей - цвет 9007.RAL
2. Сварные ограждения окрасить полимерно-порошковой
краской в заводских условиях - 9007.RAL
1
2
3
6
8
+12,900
+5,100
+9,100
0,000
+12,900
+0,900
+2,700
+4,800
+6,600
+8,700
+10,500
22 1
АМ Н/
Сэндвич-панели, 7RAL 200
Сэндвич-панели, 17RAL 60
навесной вентилируемый фасад
из керамогранита 600 мм,x600
цвет - фисташковый (UF022R)
7
навесной вентилируемый фасад
из керамогранита 600 мм,x600
цвет - малиновый (UF012R)
9
навесной вентилируемый фасад из
керамогранита 600 мм,x600
цвет - белый (UF001R)
4
7
3
5
9 6 10
78
77
6
6 7 106
910
1 5
-1,740
+12,900
+9,100
10
Ж И/
10
4 Сэндвич-панели, 3003RAL
5 Сэндвич-панели, 3005RAL
5 2
8 7
9
4
2
навесной вентилируемый фасад
из керамогранита 600 мм,x600
цвет - красный (UF023R)
Средняя общеобразовательная школа в жилом районе
«Прибрежный» (37 микрорайон) на 800 учащихся.
Цветовое решение фасадов. Фасад 22-1, М Н-А./
цоколь - керамогранитная плитка
600 мм на клею,x600
цвет - фисташковый (UF022R)
11
1111
1
1111 1111
3
2
11
6
2
Средняя общеобразовательная школа в жилом районе
«Прибрежный» (37 микрорайон) на 800 учащихся.
Фотомонтаж.
7 8 10 11 12 13 14 17 18 19 21 22
А
Б
В
Г
Д
Е
Ж
И
К
Л
М
Н
23.70
Венткамера
38.71
Венткамера
113.09
Неэксплуатируемая
площадь
49.06
Помещение
теплового
узла
6180 6000 6000 7200 1240 4360 4360 2140 4460 710 1360 1730 4580 4260 7200
72002840316017440308071071902580720048403100
59340
80.59
Неэксплуатируемая
площадь
49.90
Венткамера
699.76
Неэксплуатируемая
площадь
115.23
Неэксплуатируемая
площадь
84.32
Неэксплуатируемая
площадь
384.36
Неэксплуатируемая
площадь
20.99
Неэксплуатируемая
площадь
120.34
Неэксплуатируемая
площадь
181.37
Неэксплуатируемая
площадь
21.46
Неэксплуатируемая
площадь
259.79
Неэксплуатируемая
площадь
11.42
Неэксплуатируемая
площадь
8.15
Помещение для
хранения
люминесцентных
ламп
2016159
23.42
Электрощитовая
40.83
Насосная
39.63
Помещение
водомерного
узла
38.64
Неэксплуатируемая
площадь
Н-0,9 м.
Н-0,9 м. Н-2,4 м.
Н-2,4 м.
Н-2,0 м.
Н-2,4 м.
31.28
Неэксплуатируемая
площадь
71.72
Венткамера
Н-2,0 м.
17.61
Неэксплуатируемая
площадь
20.96
Неэксплуатируемая
площадь
-2.700
-2.300
-2.300
-2.300
-2.300
61780
Средняя общеобразовательная школа в жилом
районе «Прибрежный» (37 микрорайон) на 800
учащихся. План подвала.
5 6 7 8 10 11 12 13 14 17 18 19 21 224321
А
Б
В
Г
Д
Е
Ж
И
К
Л
М
Н
Ж/И
К/Л
Л/М
М/Н
6000 6000 6000 6000 4540 1920 6180 12000 7200 1240 4360 4360 7310 1360 1730 8840 7200
92240
72002840316017440308071071902580720048403100
59340
600060006000
18000
60.03
Класс начальной
школы (1 класс)
60.10
Класс начальной
школы (1 класс)
67.32
Компьютерный класс
для начальной школы
56.32
Коридор
9.86
Вестибюль
4.92
Тамбур
21.79
ЛК-3
15.28
Комната охраны
36.09
Игровая
6.37
Тамбур
89.50
Вестибюль
34.98
Гардероб
21.24
ЛК-2
5.58
Распределительная
электрощитовая
8.91
Тамбур
146.39
Вестибюль
48.26
Гардероб
64.85
Кабинет ОБЖ
21.26
ЛК-1
31.59
Комната занятий
для МГН
5.51
Санузел для МГН
5.51
Санузел для МГН
79.91
Коридор
24.30
Медицинский кабинет
3.89
Санузел
5.51
КУИ
17.19
Процедурная
49.48
Ожидальная14.21
Прививочный кабинет
17.19
Кабинет
стоматолога
7.01
Распределительная
электрощитовая
16.07
Кабинет психолога
22.21
Лаборанская
14.69
Санузел для
мальчиков
14.69
Санузел для девочек
3.29
Комната л/г
4.85
Санузел с местом
КУИ
13.21
Кладовая хранения
спорт. инвентаря
5.83
ПУИ спортивного
ядра
23.82
Кабинет
инструкторов
физкультуры (6 чел.)
с кабиной для
переодевания
18.73
Кладовая хранения
лыж
18.64
Раздевалка девочек
11.04
Санузел
12.05
Душевая
18.64
Раздевалка
мальчиков
11.04
Санузел
12.05
Душевая
18.08
Снарядная
574.24
Спортзал
89.28
Вестибюль
13.93
Комната мастера
94.29
Кабинет трудового
обучения мальчиков
245.72
Обеденный зал
11.89
Буфет-раздаточная
34.19
Горячий цех с
холодным участком
10.62
Моечная столовой
посуды
4.28
Помещение
подготовки яиц
7.15
Помещение
подготовки мяса и
рыбы
4.78
Моечная кухонной
посуды
4.30
Моечная тары
34.80
Коридор
11.16
Помещение
скоропортящихся
продуктов
1.99
Тамбур загрузочной
1.83
Тамбур
6.11
Помещение
вторичной
подготовки овощей
9.22
Помещение сухих
продуктов
9.82
Помещение персонала
1.56
Душевая
5.01
Санузел
78.37
Рекреация
-1.260
35253525
3.60
Коридор
4.61
Кладовая овощей
99.89
Рекреация
53.13
Спальное помещение
продленной группы
4.37
ПУИ
15.23
Санузел для девочек
49.93
Игровая
11.63
Гардероб
60.03
Класс начальной
школы (1 класс)
10.33
Лифтовой холл
2016159
14.67
Санузел для
мальчиков
39.00
Спальное помещение
продленной группы
10.58
Хозяйственная
кладовая для мед.
кабинетов
7.77
Гардеробная
8.42
Серверная
6.96
Хозяйственная
кладовая
61.94
Коридор
11.73
Кладовая хранения
коньков
27.37
Гардероб
22.39
ЛК-4
38.95
Зона обеденного
зала для
преподавателей
3.81
Помещение хранения
игрушек
ОК-4
на отм. +2.850
ОК-5
на отм. +2.850
ОК-5
на отм. +2.850
61.53
Кабинет химии
Средняя общеобразовательная школа в жилом
районе «Прибрежный» (37 микрорайон) на 800
учащихся. План 1-го этажа.
5 6 7 8 10 11 12 13 14 17 18 19 21 224321
А
Б
В
Г
Д
Е
Ж
И
К
Л
М
Н
Ж/И
К/Л
Л/М
М/Н
6000 6000 6000 6000 4540 1920 6180 12000 7200 1240 4360 4360 7310 1360 1730 8840 7200
92240
72002840316017440308071071902580720048403100
59340
600060006000
18000
164.52
Рекреация
60.03
Класс начальной
школы (3 класс)
60.10
Класс начальной
школы (3 класс)
61.07
Класс начальной
школы (4 класс)
21.24
ЛК-2
155.29
Фойе-рекреация
61.73
Кабинет русского
языка
61.77
Кабинет биологии
61.77
Кабинет математики
61.07
Класс начальной
школы (4 класс)
21.26
ЛК-1
273.34
Актовый зал
58.61
Коридор
61.53
Кабинет физики
31.59
Кабинет татарского
языка (16 уч.)
21.79
ЛК-3
15.41
Комната отдыха
106.31
Коридор
53.50
Рекреация
36.09
Кабинет директора
18.04
Приемная
22.90
Кабинет зам.
директора
19.43
Канцелярия
88.52
Учительская
61.49
Класс начальной
школы (2 класс)
66.87
Кабинет истории и
обществознания
13.26
Санузел для
мальчиков
13.26
Санузел для девочек
3.29
Комната л/г 4.06
Санузел
20.51
Комната хранения
музыкальных
инструментов и
декораций
10.27
Артистическая для
мальчиков
10.22
Артистическая для
девочек
30.46
Костюмерная
19.29
Подсобное помещение
кабинета ИЗО и
черчения
80.22
Кабинет черчения и
ИЗО
+4.500
+4.500
+4.500
+4.500 +4.500
60.38
Класс начальной
школы (2 класс)
61.07
Класс начальной
школы (4 класс)
60.07
Класс начальной
школы (2 класс)
60.03
Класс начальной
школы (3 класс)
2016159
36.12
Игровая
15.82
Лаборанская
39.00
Компьютерный класс
для начальной школы
22.21
Лаборанская
14.39
Кабинет логопеда
6.15
Санузел для МГН
6.15
Санузел для МГН
22.39
ЛК-4
4.96
Хозяйственная
кладовая
22.05
Лифтовой холл с
зоной безопасности
МГН
15.23
Санузел для девочек
4.37
ПУИ
14.67
Санузел для
мальчиков
76.86
Фойе
ОК-4
на отм. +6.750
ОК-5
на отм. +6.750
ОК-5
на отм. +6.750
8.56
Радиоузел
Средняя общеобразовательная школа в жилом
районе «Прибрежный» (37 микрорайон) на 800
учащихся. План 2-го этажа.
5 6 7 8 10 11 12 13 14 17 18 19 21 224321
А
Б
В
Г
Д
Е
Ж
И
К
Л
М
Н
Ж/И
К/Л
Л/М
М/Н
6000 6000 6000 6000 4540 1920 6180 12000 7200 1240 4360 4360 7310 1360 1730 8840 7200
92240
72002840316017440308071071902580720048403100
59340
600060006000
18000
21.26
ЛК-1
21.24
ЛК-2
108.31
Рекреация
61.73
Кабинет русского
языка
61.77
Кабинет биологии
61.77
Кабинет математики 38.79
Кабинет
иностранного языка
22.39
ЛК-4
294.03
Библиотека,
читальный зал
57.17
Коридор
61.53
Кабинет физики
31.59
Кабинет татарского
языка (16 уч.)
84.25
Рекреация
61.77
Кабинет
обществознания
61.77
Кабинет географии
60.03
Кабинет русского
языка
17.35
Лаборанская
60.10
Кабинет химии
83.75
Кабинет трудового
обучения девочек
16.48
Лаборанская
61.45
Кабинет географии
21.79
ЛК-3
61.49
Кабинет математики
66.87
Кабинет истории и
обществознания
71.83
Кабинет черчения и
ИЗО 15.96
Лаборанская
56.91
Компьютерный класс
13.26
Санузел для
мальчиков
13.26
Санузел для девочек
3.29
Комната л/г 4.06
Санузел
88.95
Коридор
53.50
Рекреация
76.54
Компьютерный класс
83.71
Кабинет проведения
кружков
11.26
Раздевалка девочек
11.20
Раздевалка
мальчиков
2016159
57.43
Компьютерный класс
14.39
Помещение
лаборантов
39.00
Компьютерный класс
17.80
Лаборанская
38.79
Кабинет
иностранного языка
15.82
Лаборанская
22.21
Лаборанская
6.15
Санузел для МГН
6.15
Санузел для МГН
75.80
Коридор
4.96
Кроссовая
77.66
Фойе
49.80
Коридор
22.05
Лифтовой холл с
зоной безопасности
МГН
15.23
Санузел для девочек
с кабиной личной
гигиены
4.37
ПУИ
14.67
Санузел для
мальчиков
ОК-4
на отм. +10.650
Средняя общеобразовательная школа в жилом
районе «Прибрежный» (37 микрорайон) на 800
учащихся. План 3-го этажа.
0.000
АБВГДЕЖИКЛМН
+3.900
+7.800
-2.700
+11.620
+14.620
3100 4840 7200 2580 7190 710 3080 17440 3160 2840 7200
59340
3600
300
3600
300
3600
320
1500
П1-1
П1-1
+12.070 +12.160 +12.180
+11.700
+9.750
+5.850
+1.950
+12.070+12.160
+11.700
+2.850
+6.750
+10.650
Защитный слой из гравия
фракцией 5-10 мм.
2000
+15.830
+14.980
+12.900
+6.600
+4.800
-0.320
+14.980
+15.830
+12.900
+10.500
+8.700
+6.600
+4.800
+5.100
+4.270
+3.600
3600
320
2100
+14.280
+12.450
+8.550
+4.650
+12.450
+8.550
+4.650
ОГ-1
Ур.з. -1.295
+10.800
-2.300-2.300
Средняя общеобразовательная школа в жилом
районе «Прибрежный» (37 микрорайон) на 800
учащихся. Разрез 1-1.
0.000
6 7 8 10 11 12 13 14 17 18 19 21 22
+3.900
+7.800
-2.700
+11.620
+14.620
1920 6180 6000 6000 7200 1240 4360 4360 7310 1360 1730 8840 720063700
+5.810
+1.910
П1-1 П1-1
+12.900
+15.830
+12.900
+9.100
3 (17)
+12.070
+14.980
+12.070
+10.500
+11.700
+9.750
+5.850
+1.950
+5.100
-0.600
2400
1800900
+12.450
+8.540
+4.650
2000
2400
+8.550
+6.750
+4.650
+2.850
Ур.з. -1.460
+10.800
+3.000
2016159
-2.300 -2.300
Средняя общеобразовательная школа в жилом
районе «Прибрежный» (37 микрорайон) на 800
учащихся. Разрез 2-2.

Средняя школа на 800 мест, 3 этажа

  • 1.
    Средняя общеобразовательная школана 800 учащихся в жилом районе «Прибрежный» (37 микрорайон)
  • 2.
    ПОЯСНИТЕЛЬНАЯ ЗАПИСКА Здание запроектировано3-х этажным с подвалом, имеет внутренний двор и пристроенный спортзал. Размеры здания в осях 61.7м х 59,3м, спортзала в осях 30,4м х 18м. Школа рассчитана на 800 учащихся. Здание имеет 2 входные группы. Учебные кабинеты расположены по наружному периметру здания, что обеспечивает необходимую инсоляцию и достаточную естественную освещенность. В здание запроектирован подъемник для инвалидов и санузлы для маломобильных групп населения. На первом этаже расположены классы начальной школы (1-ые классы), кабинеты трудового обучения, медицинский блок. В северо-зепедной части здания расположен пищеблок с обеденным залом и блок вспомогательных помещений при спортзале (раздевалки, снарядная, кабинет инструктора физкультуры). На втором этаже расположены классы начальной школы (2-4 классы), актовый зал, кабинеты русского языка кабинеты татарского языка, иностранных языков, математики, биологии, кабинет директора и учительские. На третьем этаже расположены библиотека с читальным залом, кабинеты математики, химии, физики, кабинеты географии, черчения и ИЗО, компьютерные классы. В подвале расположены венткамеры, электрощитовая, помещения водомерного узла, насосная. В отделке фасадов применен навесной вентилируемый фасад из керамогранитных плиток разных цветов. ТЭПЫ Общая площадь здания - 11449,00 кв. м., в т.ч.: Площадь первого этажа - 2796,81 кв. м. Площадь второго этажа - 2661,16 кв. м. Площадь третьего этажа - 2661,16 кв. м. Площадь спортзала - 547,24 кв. м. Площадь подвала - 2784,92 кв. м. Площадь застройки - 3909,12 кв. м., Площадь кровли - 3550,87 кв. м. Строительный объем - 51805,3 куб. м., в том числе объем подвала - 7721,5 куб. м. Средняя общеобразовательная школа в жилом районе «Прибрежный» (37 микрорайон) на 800 учащихся. Пояснительная записка.
  • 3.
    Средняя общеобразовательная школав жилом районе «Прибрежный» (37 микрорайон) на 800 учащихся. Фотофиксация существ. состояния места пректирования. Ситуационный план. Въезд на территорию жилого дома Въезд на территорию детского сада
  • 4.
    Средняя общеобразовательная школав жилом районе «Прибрежный» (37 микрорайон) на 800 учащихся. Видовой кадр 1.
  • 5.
    Средняя общеобразовательная школав жилом районе «Прибрежный» (37 микрорайон) на 800 учащихся. Видовой кадр 2.
  • 6.
    Средняя общеобразовательная школав жилом районе «Прибрежный» (37 микрорайон) на 800 учащихся. Видовой кадр 3.
  • 7.
    Средняя общеобразовательная школав жилом районе «Прибрежный» (37 микрорайон) на 800 учащихся. Фотомонтаж.
  • 8.
    -1,740 +12,900 +9,100 +5,100 0,000 +12,900 +0,900 +2,700 +4,800 +6,600 +8,700 +10,500 0,000 +12,900 +0,900 +2,700 +4,800 +6,600 +8,700 +10,500 0,000 +12,900 1 227 НА Л 7 4 8 3 11 6 1068 11 9 7 10 11 8 97 10 6 10 Сэндвич-панели, RAL 1013 керамогранитная плитка 600 мм,x600 цвет - оранжево-персиковый (UF017R) 1 2 3 6 8 Сэндвич-панели, 7RAL 200 Сэндвич-панели, 17RAL 60 керамогранитная плитка 600 мм,x600 цвет - фисташковый (UF022R) 7 9 керамогранитная плитка 600 мм,x600 цвет - белый (UF001R) 10 4 Сэндвич-панели, 3003RAL 5 Сэндвич-панели, 3005RAL керамогранитная плитка 600 мм,x600 цвет - красный (UF023R) Примечание: 1. Индивидуальные витражи выполнить из алюминиевых профилей - цвет 9007.RAL 2. Сварные ограждения окрасить полимерно-порошковой краской в заводских условиях - 9007.RAL Средняя общеобразовательная школа в жилом районе «Прибрежный» (37 микрорайон) на 800 учащихся. Цветовое решение фасадов. Фасад 1-22, А-Н. 7 8 керамогранитная плитка 600 мм,x600 цвет - малиновый (UF012R) 5 1 10 3 5 2 11 цоколь - керамогранитная плитка 600 мм на клею,x600 цвет - фисташковый (UF022R) 11 10 10
  • 9.
    Сэндвич-панели, RAL 1013 навеснойвентилируемый фасад из керамогранита 600 мм,x600 цвет - оранжево-персиковый (UF017R) 0,000 +12,900 +5,100 -1,740 Примечание: 1. Индивидуальные витражи выполнить из алюминиевых профилей - цвет 9007.RAL 2. Сварные ограждения окрасить полимерно-порошковой краской в заводских условиях - 9007.RAL 1 2 3 6 8 +12,900 +5,100 +9,100 0,000 +12,900 +0,900 +2,700 +4,800 +6,600 +8,700 +10,500 22 1 АМ Н/ Сэндвич-панели, 7RAL 200 Сэндвич-панели, 17RAL 60 навесной вентилируемый фасад из керамогранита 600 мм,x600 цвет - фисташковый (UF022R) 7 навесной вентилируемый фасад из керамогранита 600 мм,x600 цвет - малиновый (UF012R) 9 навесной вентилируемый фасад из керамогранита 600 мм,x600 цвет - белый (UF001R) 4 7 3 5 9 6 10 78 77 6 6 7 106 910 1 5 -1,740 +12,900 +9,100 10 Ж И/ 10 4 Сэндвич-панели, 3003RAL 5 Сэндвич-панели, 3005RAL 5 2 8 7 9 4 2 навесной вентилируемый фасад из керамогранита 600 мм,x600 цвет - красный (UF023R) Средняя общеобразовательная школа в жилом районе «Прибрежный» (37 микрорайон) на 800 учащихся. Цветовое решение фасадов. Фасад 22-1, М Н-А./ цоколь - керамогранитная плитка 600 мм на клею,x600 цвет - фисташковый (UF022R) 11 1111 1 1111 1111 3 2 11 6 2
  • 10.
    Средняя общеобразовательная школав жилом районе «Прибрежный» (37 микрорайон) на 800 учащихся. Фотомонтаж.
  • 11.
    7 8 1011 12 13 14 17 18 19 21 22 А Б В Г Д Е Ж И К Л М Н 23.70 Венткамера 38.71 Венткамера 113.09 Неэксплуатируемая площадь 49.06 Помещение теплового узла 6180 6000 6000 7200 1240 4360 4360 2140 4460 710 1360 1730 4580 4260 7200 72002840316017440308071071902580720048403100 59340 80.59 Неэксплуатируемая площадь 49.90 Венткамера 699.76 Неэксплуатируемая площадь 115.23 Неэксплуатируемая площадь 84.32 Неэксплуатируемая площадь 384.36 Неэксплуатируемая площадь 20.99 Неэксплуатируемая площадь 120.34 Неэксплуатируемая площадь 181.37 Неэксплуатируемая площадь 21.46 Неэксплуатируемая площадь 259.79 Неэксплуатируемая площадь 11.42 Неэксплуатируемая площадь 8.15 Помещение для хранения люминесцентных ламп 2016159 23.42 Электрощитовая 40.83 Насосная 39.63 Помещение водомерного узла 38.64 Неэксплуатируемая площадь Н-0,9 м. Н-0,9 м. Н-2,4 м. Н-2,4 м. Н-2,0 м. Н-2,4 м. 31.28 Неэксплуатируемая площадь 71.72 Венткамера Н-2,0 м. 17.61 Неэксплуатируемая площадь 20.96 Неэксплуатируемая площадь -2.700 -2.300 -2.300 -2.300 -2.300 61780 Средняя общеобразовательная школа в жилом районе «Прибрежный» (37 микрорайон) на 800 учащихся. План подвала.
  • 12.
    5 6 78 10 11 12 13 14 17 18 19 21 224321 А Б В Г Д Е Ж И К Л М Н Ж/И К/Л Л/М М/Н 6000 6000 6000 6000 4540 1920 6180 12000 7200 1240 4360 4360 7310 1360 1730 8840 7200 92240 72002840316017440308071071902580720048403100 59340 600060006000 18000 60.03 Класс начальной школы (1 класс) 60.10 Класс начальной школы (1 класс) 67.32 Компьютерный класс для начальной школы 56.32 Коридор 9.86 Вестибюль 4.92 Тамбур 21.79 ЛК-3 15.28 Комната охраны 36.09 Игровая 6.37 Тамбур 89.50 Вестибюль 34.98 Гардероб 21.24 ЛК-2 5.58 Распределительная электрощитовая 8.91 Тамбур 146.39 Вестибюль 48.26 Гардероб 64.85 Кабинет ОБЖ 21.26 ЛК-1 31.59 Комната занятий для МГН 5.51 Санузел для МГН 5.51 Санузел для МГН 79.91 Коридор 24.30 Медицинский кабинет 3.89 Санузел 5.51 КУИ 17.19 Процедурная 49.48 Ожидальная14.21 Прививочный кабинет 17.19 Кабинет стоматолога 7.01 Распределительная электрощитовая 16.07 Кабинет психолога 22.21 Лаборанская 14.69 Санузел для мальчиков 14.69 Санузел для девочек 3.29 Комната л/г 4.85 Санузел с местом КУИ 13.21 Кладовая хранения спорт. инвентаря 5.83 ПУИ спортивного ядра 23.82 Кабинет инструкторов физкультуры (6 чел.) с кабиной для переодевания 18.73 Кладовая хранения лыж 18.64 Раздевалка девочек 11.04 Санузел 12.05 Душевая 18.64 Раздевалка мальчиков 11.04 Санузел 12.05 Душевая 18.08 Снарядная 574.24 Спортзал 89.28 Вестибюль 13.93 Комната мастера 94.29 Кабинет трудового обучения мальчиков 245.72 Обеденный зал 11.89 Буфет-раздаточная 34.19 Горячий цех с холодным участком 10.62 Моечная столовой посуды 4.28 Помещение подготовки яиц 7.15 Помещение подготовки мяса и рыбы 4.78 Моечная кухонной посуды 4.30 Моечная тары 34.80 Коридор 11.16 Помещение скоропортящихся продуктов 1.99 Тамбур загрузочной 1.83 Тамбур 6.11 Помещение вторичной подготовки овощей 9.22 Помещение сухих продуктов 9.82 Помещение персонала 1.56 Душевая 5.01 Санузел 78.37 Рекреация -1.260 35253525 3.60 Коридор 4.61 Кладовая овощей 99.89 Рекреация 53.13 Спальное помещение продленной группы 4.37 ПУИ 15.23 Санузел для девочек 49.93 Игровая 11.63 Гардероб 60.03 Класс начальной школы (1 класс) 10.33 Лифтовой холл 2016159 14.67 Санузел для мальчиков 39.00 Спальное помещение продленной группы 10.58 Хозяйственная кладовая для мед. кабинетов 7.77 Гардеробная 8.42 Серверная 6.96 Хозяйственная кладовая 61.94 Коридор 11.73 Кладовая хранения коньков 27.37 Гардероб 22.39 ЛК-4 38.95 Зона обеденного зала для преподавателей 3.81 Помещение хранения игрушек ОК-4 на отм. +2.850 ОК-5 на отм. +2.850 ОК-5 на отм. +2.850 61.53 Кабинет химии Средняя общеобразовательная школа в жилом районе «Прибрежный» (37 микрорайон) на 800 учащихся. План 1-го этажа.
  • 13.
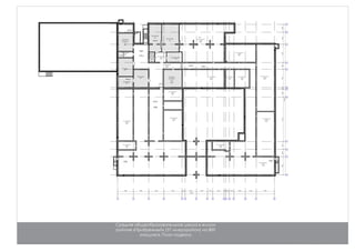
    5 6 78 10 11 12 13 14 17 18 19 21 224321 А Б В Г Д Е Ж И К Л М Н Ж/И К/Л Л/М М/Н 6000 6000 6000 6000 4540 1920 6180 12000 7200 1240 4360 4360 7310 1360 1730 8840 7200 92240 72002840316017440308071071902580720048403100 59340 600060006000 18000 164.52 Рекреация 60.03 Класс начальной школы (3 класс) 60.10 Класс начальной школы (3 класс) 61.07 Класс начальной школы (4 класс) 21.24 ЛК-2 155.29 Фойе-рекреация 61.73 Кабинет русского языка 61.77 Кабинет биологии 61.77 Кабинет математики 61.07 Класс начальной школы (4 класс) 21.26 ЛК-1 273.34 Актовый зал 58.61 Коридор 61.53 Кабинет физики 31.59 Кабинет татарского языка (16 уч.) 21.79 ЛК-3 15.41 Комната отдыха 106.31 Коридор 53.50 Рекреация 36.09 Кабинет директора 18.04 Приемная 22.90 Кабинет зам. директора 19.43 Канцелярия 88.52 Учительская 61.49 Класс начальной школы (2 класс) 66.87 Кабинет истории и обществознания 13.26 Санузел для мальчиков 13.26 Санузел для девочек 3.29 Комната л/г 4.06 Санузел 20.51 Комната хранения музыкальных инструментов и декораций 10.27 Артистическая для мальчиков 10.22 Артистическая для девочек 30.46 Костюмерная 19.29 Подсобное помещение кабинета ИЗО и черчения 80.22 Кабинет черчения и ИЗО +4.500 +4.500 +4.500 +4.500 +4.500 60.38 Класс начальной школы (2 класс) 61.07 Класс начальной школы (4 класс) 60.07 Класс начальной школы (2 класс) 60.03 Класс начальной школы (3 класс) 2016159 36.12 Игровая 15.82 Лаборанская 39.00 Компьютерный класс для начальной школы 22.21 Лаборанская 14.39 Кабинет логопеда 6.15 Санузел для МГН 6.15 Санузел для МГН 22.39 ЛК-4 4.96 Хозяйственная кладовая 22.05 Лифтовой холл с зоной безопасности МГН 15.23 Санузел для девочек 4.37 ПУИ 14.67 Санузел для мальчиков 76.86 Фойе ОК-4 на отм. +6.750 ОК-5 на отм. +6.750 ОК-5 на отм. +6.750 8.56 Радиоузел Средняя общеобразовательная школа в жилом районе «Прибрежный» (37 микрорайон) на 800 учащихся. План 2-го этажа.
  • 14.
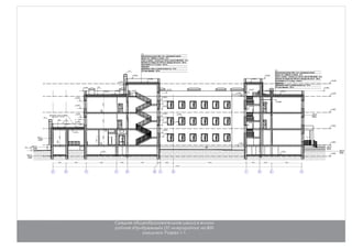
    5 6 78 10 11 12 13 14 17 18 19 21 224321 А Б В Г Д Е Ж И К Л М Н Ж/И К/Л Л/М М/Н 6000 6000 6000 6000 4540 1920 6180 12000 7200 1240 4360 4360 7310 1360 1730 8840 7200 92240 72002840316017440308071071902580720048403100 59340 600060006000 18000 21.26 ЛК-1 21.24 ЛК-2 108.31 Рекреация 61.73 Кабинет русского языка 61.77 Кабинет биологии 61.77 Кабинет математики 38.79 Кабинет иностранного языка 22.39 ЛК-4 294.03 Библиотека, читальный зал 57.17 Коридор 61.53 Кабинет физики 31.59 Кабинет татарского языка (16 уч.) 84.25 Рекреация 61.77 Кабинет обществознания 61.77 Кабинет географии 60.03 Кабинет русского языка 17.35 Лаборанская 60.10 Кабинет химии 83.75 Кабинет трудового обучения девочек 16.48 Лаборанская 61.45 Кабинет географии 21.79 ЛК-3 61.49 Кабинет математики 66.87 Кабинет истории и обществознания 71.83 Кабинет черчения и ИЗО 15.96 Лаборанская 56.91 Компьютерный класс 13.26 Санузел для мальчиков 13.26 Санузел для девочек 3.29 Комната л/г 4.06 Санузел 88.95 Коридор 53.50 Рекреация 76.54 Компьютерный класс 83.71 Кабинет проведения кружков 11.26 Раздевалка девочек 11.20 Раздевалка мальчиков 2016159 57.43 Компьютерный класс 14.39 Помещение лаборантов 39.00 Компьютерный класс 17.80 Лаборанская 38.79 Кабинет иностранного языка 15.82 Лаборанская 22.21 Лаборанская 6.15 Санузел для МГН 6.15 Санузел для МГН 75.80 Коридор 4.96 Кроссовая 77.66 Фойе 49.80 Коридор 22.05 Лифтовой холл с зоной безопасности МГН 15.23 Санузел для девочек с кабиной личной гигиены 4.37 ПУИ 14.67 Санузел для мальчиков ОК-4 на отм. +10.650 Средняя общеобразовательная школа в жилом районе «Прибрежный» (37 микрорайон) на 800 учащихся. План 3-го этажа.
  • 15.
    0.000 АБВГДЕЖИКЛМН +3.900 +7.800 -2.700 +11.620 +14.620 3100 4840 72002580 7190 710 3080 17440 3160 2840 7200 59340 3600 300 3600 300 3600 320 1500 П1-1 П1-1 +12.070 +12.160 +12.180 +11.700 +9.750 +5.850 +1.950 +12.070+12.160 +11.700 +2.850 +6.750 +10.650 Защитный слой из гравия фракцией 5-10 мм. 2000 +15.830 +14.980 +12.900 +6.600 +4.800 -0.320 +14.980 +15.830 +12.900 +10.500 +8.700 +6.600 +4.800 +5.100 +4.270 +3.600 3600 320 2100 +14.280 +12.450 +8.550 +4.650 +12.450 +8.550 +4.650 ОГ-1 Ур.з. -1.295 +10.800 -2.300-2.300 Средняя общеобразовательная школа в жилом районе «Прибрежный» (37 микрорайон) на 800 учащихся. Разрез 1-1.
  • 16.
    0.000 6 7 810 11 12 13 14 17 18 19 21 22 +3.900 +7.800 -2.700 +11.620 +14.620 1920 6180 6000 6000 7200 1240 4360 4360 7310 1360 1730 8840 720063700 +5.810 +1.910 П1-1 П1-1 +12.900 +15.830 +12.900 +9.100 3 (17) +12.070 +14.980 +12.070 +10.500 +11.700 +9.750 +5.850 +1.950 +5.100 -0.600 2400 1800900 +12.450 +8.540 +4.650 2000 2400 +8.550 +6.750 +4.650 +2.850 Ур.з. -1.460 +10.800 +3.000 2016159 -2.300 -2.300 Средняя общеобразовательная школа в жилом районе «Прибрежный» (37 микрорайон) на 800 учащихся. Разрез 2-2.