12.14
12.14
12.14
12.14
Разраб.
Проверил Артемов
Стадия Лис
т
Листов
П
02/15-780-ДОО№1.5АР1
Инв.№подп.Взам.инв.№Подп.идата
1 5
Изм. Кол.уч. Лист ДатаПодпись№ док.
Текстовая часть
Усанова
ГИП Сафина
Н. контр. Шестаков
8
Текстовая часть
1. Описание и обоснование внешнего и внутреннего вида объекта капитального
строительства, его пространственной, планировочной и функциональной
организации
Объемно-планировочное решение здания выполнено в соответствии с предпроектным
предложением, предоставленным заказчиком.
Проектируемое здание детского сада на 200 мест переменной этажности, от 2-х до 3-х
этажей. Кровля - комбинированная малоуклонная , с внутренним водостоком.
Высота этажей -3,6 метра принята в соответствии с предпроектным предложением.
Класс конструктивной пожарной опасности здания - С 0;
Класс функциональной пожарной опасности здания - Ф 1.1;
Степень огнестойкости - II;
Уровень ответственности - нормальный
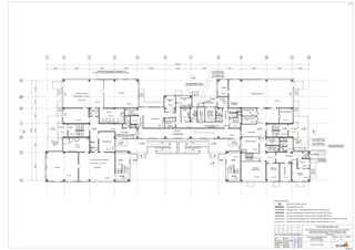
Архитектурно-планировочное решение предусматривает три блока: два блока с
групповыми ячейками (блок из 5-ти ячеек в осях 1-5 и блок из 3-х ячеек в осях 8-12) и
центральный блок с размещением пищеблока на первом этаже, зала для музыкальных и
спортивных занятий на втором этаже и административно - хозяйственной части - на
третьем этаже этаже. Зал для музыкальных занятий, кабинеты заведующего, зав. хоза и
медицинский блок расположены на 1 этаже в осях 8-12 под групповыми ячейками,
помещения прачечной и тех. помещения (ИТП и водомерный узел)расположены в
подвале.
Проект выполнен в соответствии СанПиН 2.4.1.3049-13 "Санитарно-
эпидемиологические требования к устройству, содержанию и организации режима работы
дошкольных образовательных организаций", СП 118.13330.2012«Общественные здания и
сооружения».
Детский сад разработан на 8 групп: 1-я группа раннго возраста (25 человек от 2 до 3
лет); младшая группа (25 человек от 3 до 4 лет; две группы среднего возраста (25 человек
от4 до 5 лет); 2 группы старшего возраста (25 человек от 5 до 6 лет); 2 группы
подготовительного возраста (25 человек от 6 до 7 лет).
02/15-780-ДОО№1.5АР1
Лист
Изм. Кол.уч. Лист ДатаПодпись№ док.
2
Инв.№подп.Взам.инв.№Подп.идата
Конструктивная схема здания -ж/б каркас. Наружные стены- сертифицированная
панель "Евродом -МСП" заводского изготовления (утеплитель - минераловатная плита
ISOVER Каркас-П37"). Внутренние перегородки - стеновые панели "Евродом -ВСП"
Окна пластиковые, заполнение- двухкамерный стеклопакет.
Технико-экономические показатели
1. Вместимость детского сада -200 чел.
2. Площадь застройки -1 255,2м2
3. Общая площадь здания 3 235,6 м2
в т ч 2 416,8 м кв выше 0.000, 818,8 м кв ниже 0.000
4. Строительный объем -10 965,0 м3
в т. ч. ниже 0.000-1 863,6 м 3
выше 0.000-9 101,4 м3
Проектом обеспечен доступ в здание ММГН с учетом требований СНиП 35-01-2001
"Доступность зданий и сооружений для маломобильных групп населения" . Для
обеспечения доступа ММГН до отм. 0.000 на входах в осях 4-5 и 8-9 предусматривается
пандус. Групповые ячейки разработаны для осуществления общеразвивающей
деятельности. Групповые ячейки для осуществления компенсирующей деятельности
отсутствуют.
2. Обоснование принятых объемно-пространственных и архитектурно-художественных
решений, в том числе в части соблюдения предельных параметров разрешенного
строительства объекта капитального строительства
В соответствии с СанПиН 2.4.1.3049-13 "Санитарно-эпидемиологические
требования к устройству, содержанию и организации режима работы дошкольных
образовательных организаций" здание запроектированно переменной этажности, (2-3
этажа) , объемно-пространственное решение обеспечивает изоляцию групповых ячеек,
вторыми эвакуационными выходами со второго служат наружные металлические
лестницы , с третьего этажа- внутренние лестницы. В здании имеется пищеблок,
работающий на сырье, мед. изолятор, помещения прачечной, музыкальный и
физкультурный залы, административные помещения.
3. Описание и обоснование использованных композиционных приемов при
оформлении фасадов и интерьеров объекта капитального строительства
9
02/15-780-ДОО№1.5АР1
Лист
Изм. Кол.уч. Лист ДатаПодпись№ док.
3
Инв.№подп.Взам.инв.№Подп.идата
Основным композиционным приемом оформления фасадов служит контраст
остекленных объемов лестничных клеток и групповых помешений с плоскостью стен,
облицованных фиброцементными плитами, окрашенными в соответствии с цветовым
решением. Облицовку цоколя выполнить кирпичём "Бессер" Заполнение оконных проемов
- окна ПВХ с 2-камерными стеклопакетами. Дверные проемы наружные - по ГОСТ
24698-81, утепленные, внутренние - по ГОСТ 6629- 88. Витражи из аллюминиевого
профиля фирмы "Schuco"
4. Описание решений по отделке помещений основного, вспомогательного,
обслуживающего и технического назначения
Отделка стен:
- групповые и административные помещения- покраска водно-дисперсионной
акриловой краской на всю высоту;
- коридоры, лестничные клетки, подсобные помещения - покраска водно-
дисперсионной акриловой краской на всю высоту ;
- душевые, санузлы, помещения в пищеблоке - плитка керамическая глазурованная.
Потолки в раздевальных, групповых, спальнях, физкультурном и музыкальном
залах, инвентарных, административных помещениях и в посещениях медицинского блока-
зашивка ГКЛ (60 мм) и покраска водно-дисперсионной краской. Потолки в помещениях
прачечной, служебных и бытовых помещениях - покраска водно-дисперсионной
акриловой краской на всю высоту. Потолки в помещениях пищеблока и с/у -реечный
подвесной потолок. Коридоры, тамбуры, лестничные клетки-, комната кастелянши -
подвесные потолки типа Армстронг.
Полы:
-групповые помещения, коридоры, административные помещения:
- линолеум коммерческий-2,5 мм, стяжка из цем. песчаного р-ра М150 -60 мм,
звукоизоляция- вспененный полипропилен -3 мм ;
- душевые,санузлы, помещения пищеблока, помещения медицинского блока,
лестничные клетки - керамическая плитка на клеящей мастике-10 мм, стяжка из цем.
песчаного р-ра М150 -40 мм, звукоизоляция- вспененный полипропилен -3 мм, оклеечная
гидроизоляция из полимерных материалов на битумной мастике ;
-физкультурный зал - спортивный линолеум, стяжка из цем. песчаного р-ра М150 -50
мм, звукоизоляция- вспененный полипропилен -3 мм;
-зал для музыкальныз занятий - паркет с возможностью использования моющих и
дезинфицирующих растворов, стяжка из цем. песчаного р-ра М150 -50 мм, звукоизоляция-
вспененный полипропилен -3 мм ;
10
02/15-780-ДОО№1.5АР1
Лист
Изм. Кол.уч. Лист ДатаПодпись№ док.
4
Инв.№подп.Взам.инв.№Подп.идата
-служебно-бытовые помещения - керамическая плитка, стяжка из цем. песчаного р-ра
М150 -50 мм, звукоизоляция- вспененный полипропилен -3 мм .
В групповых помещениях, расположенных на 1 этаже, предусмотрено устройство
теплого пола с применением греющего кабеля.
5. Описание архитектурных решений, обеспечивающих естественное
освещение помещений с постоянным пребыванием людей
Проектируемое здание располагается на свободном от застройки участке, без
затеняющих факторов.В соответствии с требованиями СП 52.13330.2011 "Естественное и
искусственное освещение», в проекте заложено естественное освещение помещений с
постоянным пребыванием людей.
6. Описание архитектурно-строительных мероприятий, обеспечивающих защиту
помещений от шума, вибрации и другого воздействия
В соответствии с требованиями СП 51.13330.2011 "Защита от шума", в проекте
заложены мероприятия по защите от шума и вибрации:
- в конструкции полов 1, 2 и 3 этажей заложен теплозвукоизоляционный материал -
«Пеноплекс-35» (СП 29.13330.2011 Полы), что обеспечивает нормативные значения
индекса изоляции воздушного шума 51 дБ и индекса приведенного уровня ударного шума
63 дБ
- Для применяемых перегородок ВСП толщиной 190 мм индекс изоляции воздушного
шума составляет 55 дБ, что выше нормативного (51 дБ).
7. Описание инженерно-строительных мероприятий по защите здания от
грызунов
В соответствии с требованиями СП 3.5.3.1129-02 "Санитарно-эпидемиологические
требования к проведению дератизации", в проекте заложены мероприятия по защите
здания от грызунов:
- в проемах входов в здание предусматривается установка дверей , устойчивых к
повреждению грызунами;
- предусмотрена установка металлических сеток (решеток) в местах выхода
вентиляционных отверстий.
- предусмотрена герметизация, с использованием металлической сетки, мест прохода
коммуникаций в перекрытиях, стенах, ограждениях;
- зашивки коммуникаций из гипсокартона заполняются минераловатным
теплозвукоизоляционным материалом , устойчивым к повреждению грызунами.
11
02/15-780-ДОО№1.5АР1
Лист
Изм. Кол.уч. Лист ДатаПодпись№ док.
5
Инв.№подп.Взам.инв.№Подп.идата
8.Используемые нормативные документы
1) Постановление Правительства РФ №87 от 16.02.2007 «О составе разделов проектной
документации и требованиях к их содержанию». ( в ред. Постановлений Правительства
РФ от 18.05.2009г. №427, от 21.12.2009 № 1044);
2) СП 118.13330.2012 "ОБЩЕСТВЕННЫЕ ЗДАНИЯ И СООРУЖЕНИЯ"
(Актуализированная редакция СНиП 31-06-2009 "Общественные здания и сооружения"),
в части не противоречащей СП 44.13330.2011;
3) СанПиН 2.4.1.3049-13 "Санитарно-эпидемиологические требования к устройству,
содержанию и организации режима работы дошкольных образовательных организаций"
4)Федеральный закон от 22 июля 2008 г. N 123-ФЗ «Технический регламент о
требованиях пожарной безопасности»;
5)СП 59.13330.2012 "Доступность зданий и сооружений для маломобильных групп
населения"
6) СП 52.13330.2011 "Естественное и искусственное освещение (Актуализированная
редакция СНиП 23-05-95*);
7) СП 51.13330.2011 "Защита от шума" (Актуализированная редакция СНиП 23-03-
2003);
8) СП 29.13330.2011 Полы . (Актуализированная редакция СНиП 2.03.13-88);
9) СП 3.5.3.1129-02 "Санитарно-эпидемиологические требования к проведению
дератизации
10 ТУ 2244-009-50934765-2002
11) ГОСТ 24698-81
12) ГОСТ 6629-88
13) ГОСТ 18108-80
9.Заверение проектной организации
Проектная документация разработана в соответствии с градостроительным планом
земельного участка, заданием на проектирование, градостроительным регламентом,
техническими регламентами, в том числе устанавливающими требования по обеспечению
безопасной эксплуатации зданий, строений, сооружений и безопасного использования
прилегающей к ним территорий, и с соблюдением технических условий.
Главный инженер проекта Р.М. Сафина
12
5
02 5 80 5
5
02 5 80 5
5
02 5 80 5
5
02 5 80 5
5
02 5 80 5
5
02 5 80 5
5
02 5 80 5
5
02 5 80 5
5
02 5 80 5
5
02 5 80 5
5
02 5 80 5
5
02 5 80 5

Детский сад на 200 мест без бассейна

  • 1.
    12.14 12.14 12.14 12.14 Разраб. Проверил Артемов Стадия Лис т Листов П 02/15-780-ДОО№1.5АР1 Инв.№подп.Взам.инв.№Подп.идата 15 Изм. Кол.уч. Лист ДатаПодпись№ док. Текстовая часть Усанова ГИП Сафина Н. контр. Шестаков 8 Текстовая часть 1. Описание и обоснование внешнего и внутреннего вида объекта капитального строительства, его пространственной, планировочной и функциональной организации Объемно-планировочное решение здания выполнено в соответствии с предпроектным предложением, предоставленным заказчиком. Проектируемое здание детского сада на 200 мест переменной этажности, от 2-х до 3-х этажей. Кровля - комбинированная малоуклонная , с внутренним водостоком. Высота этажей -3,6 метра принята в соответствии с предпроектным предложением. Класс конструктивной пожарной опасности здания - С 0; Класс функциональной пожарной опасности здания - Ф 1.1; Степень огнестойкости - II; Уровень ответственности - нормальный Архитектурно-планировочное решение предусматривает три блока: два блока с групповыми ячейками (блок из 5-ти ячеек в осях 1-5 и блок из 3-х ячеек в осях 8-12) и центральный блок с размещением пищеблока на первом этаже, зала для музыкальных и спортивных занятий на втором этаже и административно - хозяйственной части - на третьем этаже этаже. Зал для музыкальных занятий, кабинеты заведующего, зав. хоза и медицинский блок расположены на 1 этаже в осях 8-12 под групповыми ячейками, помещения прачечной и тех. помещения (ИТП и водомерный узел)расположены в подвале. Проект выполнен в соответствии СанПиН 2.4.1.3049-13 "Санитарно- эпидемиологические требования к устройству, содержанию и организации режима работы дошкольных образовательных организаций", СП 118.13330.2012«Общественные здания и сооружения». Детский сад разработан на 8 групп: 1-я группа раннго возраста (25 человек от 2 до 3 лет); младшая группа (25 человек от 3 до 4 лет; две группы среднего возраста (25 человек от4 до 5 лет); 2 группы старшего возраста (25 человек от 5 до 6 лет); 2 группы подготовительного возраста (25 человек от 6 до 7 лет).
  • 2.
    02/15-780-ДОО№1.5АР1 Лист Изм. Кол.уч. ЛистДатаПодпись№ док. 2 Инв.№подп.Взам.инв.№Подп.идата Конструктивная схема здания -ж/б каркас. Наружные стены- сертифицированная панель "Евродом -МСП" заводского изготовления (утеплитель - минераловатная плита ISOVER Каркас-П37"). Внутренние перегородки - стеновые панели "Евродом -ВСП" Окна пластиковые, заполнение- двухкамерный стеклопакет. Технико-экономические показатели 1. Вместимость детского сада -200 чел. 2. Площадь застройки -1 255,2м2 3. Общая площадь здания 3 235,6 м2 в т ч 2 416,8 м кв выше 0.000, 818,8 м кв ниже 0.000 4. Строительный объем -10 965,0 м3 в т. ч. ниже 0.000-1 863,6 м 3 выше 0.000-9 101,4 м3 Проектом обеспечен доступ в здание ММГН с учетом требований СНиП 35-01-2001 "Доступность зданий и сооружений для маломобильных групп населения" . Для обеспечения доступа ММГН до отм. 0.000 на входах в осях 4-5 и 8-9 предусматривается пандус. Групповые ячейки разработаны для осуществления общеразвивающей деятельности. Групповые ячейки для осуществления компенсирующей деятельности отсутствуют. 2. Обоснование принятых объемно-пространственных и архитектурно-художественных решений, в том числе в части соблюдения предельных параметров разрешенного строительства объекта капитального строительства В соответствии с СанПиН 2.4.1.3049-13 "Санитарно-эпидемиологические требования к устройству, содержанию и организации режима работы дошкольных образовательных организаций" здание запроектированно переменной этажности, (2-3 этажа) , объемно-пространственное решение обеспечивает изоляцию групповых ячеек, вторыми эвакуационными выходами со второго служат наружные металлические лестницы , с третьего этажа- внутренние лестницы. В здании имеется пищеблок, работающий на сырье, мед. изолятор, помещения прачечной, музыкальный и физкультурный залы, административные помещения. 3. Описание и обоснование использованных композиционных приемов при оформлении фасадов и интерьеров объекта капитального строительства 9
  • 3.
    02/15-780-ДОО№1.5АР1 Лист Изм. Кол.уч. ЛистДатаПодпись№ док. 3 Инв.№подп.Взам.инв.№Подп.идата Основным композиционным приемом оформления фасадов служит контраст остекленных объемов лестничных клеток и групповых помешений с плоскостью стен, облицованных фиброцементными плитами, окрашенными в соответствии с цветовым решением. Облицовку цоколя выполнить кирпичём "Бессер" Заполнение оконных проемов - окна ПВХ с 2-камерными стеклопакетами. Дверные проемы наружные - по ГОСТ 24698-81, утепленные, внутренние - по ГОСТ 6629- 88. Витражи из аллюминиевого профиля фирмы "Schuco" 4. Описание решений по отделке помещений основного, вспомогательного, обслуживающего и технического назначения Отделка стен: - групповые и административные помещения- покраска водно-дисперсионной акриловой краской на всю высоту; - коридоры, лестничные клетки, подсобные помещения - покраска водно- дисперсионной акриловой краской на всю высоту ; - душевые, санузлы, помещения в пищеблоке - плитка керамическая глазурованная. Потолки в раздевальных, групповых, спальнях, физкультурном и музыкальном залах, инвентарных, административных помещениях и в посещениях медицинского блока- зашивка ГКЛ (60 мм) и покраска водно-дисперсионной краской. Потолки в помещениях прачечной, служебных и бытовых помещениях - покраска водно-дисперсионной акриловой краской на всю высоту. Потолки в помещениях пищеблока и с/у -реечный подвесной потолок. Коридоры, тамбуры, лестничные клетки-, комната кастелянши - подвесные потолки типа Армстронг. Полы: -групповые помещения, коридоры, административные помещения: - линолеум коммерческий-2,5 мм, стяжка из цем. песчаного р-ра М150 -60 мм, звукоизоляция- вспененный полипропилен -3 мм ; - душевые,санузлы, помещения пищеблока, помещения медицинского блока, лестничные клетки - керамическая плитка на клеящей мастике-10 мм, стяжка из цем. песчаного р-ра М150 -40 мм, звукоизоляция- вспененный полипропилен -3 мм, оклеечная гидроизоляция из полимерных материалов на битумной мастике ; -физкультурный зал - спортивный линолеум, стяжка из цем. песчаного р-ра М150 -50 мм, звукоизоляция- вспененный полипропилен -3 мм; -зал для музыкальныз занятий - паркет с возможностью использования моющих и дезинфицирующих растворов, стяжка из цем. песчаного р-ра М150 -50 мм, звукоизоляция- вспененный полипропилен -3 мм ; 10
  • 4.
    02/15-780-ДОО№1.5АР1 Лист Изм. Кол.уч. ЛистДатаПодпись№ док. 4 Инв.№подп.Взам.инв.№Подп.идата -служебно-бытовые помещения - керамическая плитка, стяжка из цем. песчаного р-ра М150 -50 мм, звукоизоляция- вспененный полипропилен -3 мм . В групповых помещениях, расположенных на 1 этаже, предусмотрено устройство теплого пола с применением греющего кабеля. 5. Описание архитектурных решений, обеспечивающих естественное освещение помещений с постоянным пребыванием людей Проектируемое здание располагается на свободном от застройки участке, без затеняющих факторов.В соответствии с требованиями СП 52.13330.2011 "Естественное и искусственное освещение», в проекте заложено естественное освещение помещений с постоянным пребыванием людей. 6. Описание архитектурно-строительных мероприятий, обеспечивающих защиту помещений от шума, вибрации и другого воздействия В соответствии с требованиями СП 51.13330.2011 "Защита от шума", в проекте заложены мероприятия по защите от шума и вибрации: - в конструкции полов 1, 2 и 3 этажей заложен теплозвукоизоляционный материал - «Пеноплекс-35» (СП 29.13330.2011 Полы), что обеспечивает нормативные значения индекса изоляции воздушного шума 51 дБ и индекса приведенного уровня ударного шума 63 дБ - Для применяемых перегородок ВСП толщиной 190 мм индекс изоляции воздушного шума составляет 55 дБ, что выше нормативного (51 дБ). 7. Описание инженерно-строительных мероприятий по защите здания от грызунов В соответствии с требованиями СП 3.5.3.1129-02 "Санитарно-эпидемиологические требования к проведению дератизации", в проекте заложены мероприятия по защите здания от грызунов: - в проемах входов в здание предусматривается установка дверей , устойчивых к повреждению грызунами; - предусмотрена установка металлических сеток (решеток) в местах выхода вентиляционных отверстий. - предусмотрена герметизация, с использованием металлической сетки, мест прохода коммуникаций в перекрытиях, стенах, ограждениях; - зашивки коммуникаций из гипсокартона заполняются минераловатным теплозвукоизоляционным материалом , устойчивым к повреждению грызунами. 11
  • 5.
    02/15-780-ДОО№1.5АР1 Лист Изм. Кол.уч. ЛистДатаПодпись№ док. 5 Инв.№подп.Взам.инв.№Подп.идата 8.Используемые нормативные документы 1) Постановление Правительства РФ №87 от 16.02.2007 «О составе разделов проектной документации и требованиях к их содержанию». ( в ред. Постановлений Правительства РФ от 18.05.2009г. №427, от 21.12.2009 № 1044); 2) СП 118.13330.2012 "ОБЩЕСТВЕННЫЕ ЗДАНИЯ И СООРУЖЕНИЯ" (Актуализированная редакция СНиП 31-06-2009 "Общественные здания и сооружения"), в части не противоречащей СП 44.13330.2011; 3) СанПиН 2.4.1.3049-13 "Санитарно-эпидемиологические требования к устройству, содержанию и организации режима работы дошкольных образовательных организаций" 4)Федеральный закон от 22 июля 2008 г. N 123-ФЗ «Технический регламент о требованиях пожарной безопасности»; 5)СП 59.13330.2012 "Доступность зданий и сооружений для маломобильных групп населения" 6) СП 52.13330.2011 "Естественное и искусственное освещение (Актуализированная редакция СНиП 23-05-95*); 7) СП 51.13330.2011 "Защита от шума" (Актуализированная редакция СНиП 23-03- 2003); 8) СП 29.13330.2011 Полы . (Актуализированная редакция СНиП 2.03.13-88); 9) СП 3.5.3.1129-02 "Санитарно-эпидемиологические требования к проведению дератизации 10 ТУ 2244-009-50934765-2002 11) ГОСТ 24698-81 12) ГОСТ 6629-88 13) ГОСТ 18108-80 9.Заверение проектной организации Проектная документация разработана в соответствии с градостроительным планом земельного участка, заданием на проектирование, градостроительным регламентом, техническими регламентами, в том числе устанавливающими требования по обеспечению безопасной эксплуатации зданий, строений, сооружений и безопасного использования прилегающей к ним территорий, и с соблюдением технических условий. Главный инженер проекта Р.М. Сафина 12
  • 6.
  • 7.
  • 8.
  • 9.
  • 10.
  • 11.
  • 12.
  • 13.
  • 14.
  • 15.
  • 16.
  • 17.