QUEST GROUP OF INSTITUTIONS
SIX - MONTH TRAINING REPORT
AT
MAIZON ENTERPRISES PVT. LTD.
NAME - SAURAV
COURSE - B – TECH
BRANCH - CIVIL ENGINEERING
SEMESTER - 8th
NAME OF INDUSTRY - MAIZON ENTERPRISES PVT. LTD
NAME OF INSTITUTE - QUEST GROUP OF INSTITUTIONS
ACKNOWLEDGMENT
Every project big or small is successful largely due to the effort of a number of wonderful
people who have always given their valuable advice or lent a helping hand.
I, Saurav, the student of Quest Group of Institutions extremely grateful to
“Maizon Enterprises Pvt. Ltd” for the confidence bestowed in me. At this juncture I feel
deeply honored in expressing my sincere thanks to our Head of Company Mr. Lalit Sharma
for making the resources available at right time and providing valuable insights leading to the
successful completion of my project.
I take this opportunity to express my profound gratitude and deep regards to
my guide Trisha Thapar for her exemplary guidance, monitoring and constant
encouragement throughout the course of this thesis. The blessing, help and guidance given by
her time to time shall carry me a long way in the journey of life on which I am about to
embark.
I am obliged to staff members of Maizon Enterprises Pvt. Ltd. for the valuable information
provided by them in their respective fields. I am grateful for their cooperation during the
period of my assignment.
I have taken efforts in this project. However, it would not have been possible without the kind
support and help of many individuals and organization. I would like to extend my sincere
thanks to all of them. I am highly indebted to OPPEIN Company for their guidance and
constant supervision as well as for providing necessary information regarding the project &
also for their support in completing the project.
I would also like to thank all the faculty members of Quest Group of Institutions for their
critical advice and guidance without which this project would not have been possible.
Lastly, I thank almighty, my parents, brother and friends for their constant encouragement
without which this assignment would not be possible.
SAURAV
TRAINING COMPLETION CERTIFICATE
CONTENTS
SR. NO. DESCRIPTION
1 Acknowledgement
2 Training Completion Certificate
3 Profile of the Company
4 Overview of the Project
5 Retail Clients Kitchen Designs
6 Exhibition Kitchen Designs
7 Builders Project Kitchen Designs
8 Projects -
Savitry Green - 1
Savitry Green – 2
Whistler Heights – Mohali
9 Vanity Designs
10 Wardrobe Designs
11 Quotations
12 Conclusion
13 References
PROFILE OF THE COMPANY
About – Maizon Enterprises
The Maizon Enterprises Pvt. Ltd. is engaged in finding solutions for the customers in various
fields. The current focus is on providing products & services from South China (Guangzhou,
Foshan, Dong Guan, Shenzhen) to the clients in India for the civil construction business.
They are the Authorized Distributors of OPPEIN-The Largest Cabinetry Manufacturer in
Asia for Punjab region.
Maizon believe in customer satisfaction. Everyone has unique styles, that is why a fully
customizable design allows to best meet customer needs and provide the best solutions in
helping to build an ideal home. They are having variety of colors, styles and accessories for
cabinets, bathroom vanities, wardrobes and countertops.
Their Current Project Portfolio comprises of N.K.Sharma Group of Companies (Savitry
Greens 1, Savitry Green 2 & Savitry Towers Mohali) 2700+ Flats. They also specialize in
providing Sample Flat Interior Design Solutions for upcoming Residential Projects.
About Oppein
OPPEIN founded in 1994, is now the largest one in Asia, with 300,000 square meters
manufacturing center and 8 factories located in GUANGZHOU that houses
advanced production equipment HOMAG® from Germany.
Specializing in Integrated Kitchen, Wardrobe, Bathroom Cabinet, Solid Surface and Other
Home Furniture.
They have an 18 years experience in cabinetry industry. Every year, more than 230,000 sets
of kitchens cabinets, 128,000 wardrobes and 100,000 Bathroom Cabinets turn out by
Oppein with 18-20% annual output growth rate. And the annual turnovers reach to
650,000,000 USD. They have a 6000 sq.m new showroom which is located in the factory.
All of the products raw material meets with European E1 standard. There machine use
HOMAG which is the best brand name from Germany, and we also build the long term
cooperation with Hettich in Germany, Blum in Austria which are the most famous company
in the world for the hardware.
6000 people work in OPPEIN group. Furthermore, they have 2000 showrooms in CHINA
market, 63 showrooms in the overseas market and the quantity has increased by 20% last
year.
For over 18 years, we’ve been dedicated to providing unique solutions to our customers.
OPPEIN is focused on providing Eco-friendly & user friendly home products, which creates
comfortable customer experience.
Since its initial introduction of integrated kitchen concept to China in 1994, OPPEIN has
been endeavoring on product innovation. With the experience gained from the integrated
kitchen cabinets, the concept of Built-Ins has been gradually applying to its successive
products. Eg. Wardrobes, bathroom, vanities. and other customized furniture. Kitchen
cabinets as well as other products by OPPEIN adopt world advanced manufacture technology
and are processed under strict quality control system. in the past 15 years. OPPEIN has
become a world-class manufacturer & supplier of integrated kitchens and shared the
happiness with millions of families for using OPPEIN‘s products across the world.
As the leader of Chinese cabinetry industry. OPPEIN has been dedicating to provide
built—in solutions to meet customer’s specific requirements on every single detail by
international advanced equipments and techniques. excellent designing concepts and
European quality standard.
It respects and encourages customers to optimize their ideal plans, which fully satisfy their
desires and reflect their tastes on life insisting on improving techniques and designs. OPPEIN
has become the benchmark symbol of integrated kitchens in China. New OPPEIN is
marching toward the new summit which becomes world-famous brand in cabinetry industry.
OVERVIEW OF THE PROJECT
With the completion of the 6 months long training my experience with firm was excellent.
The task of undertaking the training travelled through a dynamic experience. With the
constant guidance, valuable suggestions, timely help and heartwarming encouragement
rendered to me by all the team members of MAIZON ENTERPRISES PVT.LTD. served as
an excellent learning platform.
In course of the training I came through the working pattern of the office along with
professionalism. Also the basic practical experience at the site helped a lot .Design methods,
different construction methods ,basic details of the building elements and on-site experience
are to name a few to which I was exposed to. Along with it the firm gave me enough
opportunities and encouragement to think independently about the design solutions.
KITCHEN PARTS
Carcass:base cabinets, wall cabinets, tall cabinets
Kicker:kickboard, adjustable leg
Countertop:acrylic, quarztone
Appliances:fridge、range hood、gas stove、microwave、oven、dishwasher etc
Hardware:hinges、slides、handles、stationary hook、three-in-one etc.
Accessories:sink, faucet, basket, waste bin, rice container etc.
Decorative panels:vertical panel, top panel, crown molding, back wall decorative panels
etc.
REQUIREMENTS BEFOREKITCHEN INSTALLATION
1. Electrical Points, Flooring, Tiles on Wall, Plumbing points & Frame of Window, all these
should be properly installed.
2. Floor Traps should be properly installed & cover.
3. Packed materials of kitchen according to Kitchen Type should be placed on site
4. Equipments & Tools required for installation should be on site
KITCHEN INSTALLATION PROCESS
 Measure & mark the wall
 Install the Wall cabinets Carcase
 Install the Base cabinets Carcase
 Install Fillers
 Lay the Countertop slab
 Attach the door shutters & hardware.
 Install Kitchen Accessories
 Finally, place the Kickboard at bottom
RETAIL CLIENTS
KITCHEN DESIGNS
CLIENT NAME - MR. RAJ BANSAL
ADDRESS - RAJGURU NAGAR, LUDHIANA
REQUIREMENTS - KITCHEN & INTERIOR DESIGN
STATUS - KITCHEN DESIGNS ARE DONE
OTHER INTERIOR WORK DISCUSSION IS IN
PROCESS
KITCHEN DESIGN
RENDER VIEWS
CLIENT NAME - MR. DEVINDER SINGH
ADDRESS - JAGRAON, LUDHIANA
REQUIREMENTS - KITCHEN
STATUS - KITCHEN DESIGNS ARE DONE
KITCHEN DESIGN
RENDER VIEWS
CLIENT NAME - MR. GURCHINTEN SINGH
ADDRESS - DUGRI, LUDHIANA
REQUIREMENTS - KITCHEN
STATUS - KITCHEN DESIGNS ARE DONE
KITCHEN DESIGN
RENDER VIEWS
CLIENT NAME - MR. JATINDER SINGH
ADDRESS - PHASE 7, MOHALI
REQUIREMENTS - KITCHEN & OTHER INTERIOR DESIGNS
STATUS - FULLY COMPLETED ALL DESIGNS
KITCHEN DESIGN
RENDER VIEWS
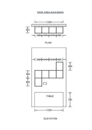
STUDY TABLE RACK DESIGN
STUDY TABLE RACK DESIGN
STUDY TABLE RACK DESIGN
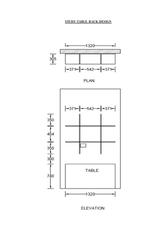
UNDER STAIRCASE AREA DESIGN
VANITY
CLIENT NAME - MR. DHIRO
ADDRESS - LUDHIANA
REQUIREMENTS - KITCHEN
STATUS - KITCHEN DESIGNS COMPLETED
KITCHEN DESIGN
RENDER VIEWS
CLIENT NAME - MR. PRANAV MEHRA
ADDRESS - SECTOR – 117, MOHALI
REQUIREMENTS - KITCHEN
STATUS - KITCHEN DESIGNS COMPLETED
KITCHEN DESIGN
RENDER VIEWS
CLIENT NAME - MRS. PREETAM KAUR
ADDRESS - SECTOR – 71, MOHALI
REQUIREMENTS - KITCHEN
STATUS - KITCHEN DESIGNS COMPLETED
KITCHEN DESIGN
RENDER VIEWS
CLIENT NAME - MR. RAMAN
ADDRESS - PHASE 7, MOHALI
REQUIREMENTS - KITCHEN
STATUS - KITCHEN DESIGNS COMPLETED
KITCHEN DESIGN
RENDER VIEWS
CLIENT NAME - MR. TERSEM
ADDRESS - PATIALA
REQUIREMENTS - KITCHEN
STATUS - KITCHEN DESIGNS COMPLETED
KITCHEN DESIGN
RENDER VIEWS
EXHIBITION
KITCHEN DESIGNS
EXHIBITION - LUDHINA EXHIBITION
ADDRESS - GULMOR HOTEL, LUDHINA
REQUIREMENTS - LACQUER & HPL KITCHEN
STATUS - KITCHEN DESIGNS COMPLETED
KITCHEN DESIGN
RENDER VIEWS
ACTUAL PICTURES
EXHIBITION - CHANDIGARH EXHIBITION
ADDRESS - SECTOR – 17 CHANDIGARH
REQUIREMENTS - MELAMINE & METAL FOIL KITCHEN
STATUS - KITCHEN DESIGNS COMPLETED
KITCHEN DESIGN
RENDER VIEWS
ACTUAL PICTURES
BUILDERS
PROJECT
KITCHEN DESIGN
PROJECT - ACME HEIGHTS 2
ADDRESS - CHAJUMAJRA, KHARAR
REQUIREMENTS - KITCHEN
STATUS - KITCHEN DESIGNS COMPLETED
KITCHEN DESIGN
RENDER VIEWS
PROJECT - MONA GREENS
ADDRESS - VIP ROAD, ZIRAKPUR
REQUIREMENTS - KITCHEN
STATUS - KITCHEN DESIGNS COMPLETED
KITCHEN DESIGN
RENDER VIEWS
PROJECT - PARK WOOD GLADE
ADDRESS - LANDRA – KHARAR ROAD, MOHALI
REQUIREMENTS - KITCHEN
STATUS - KITCHEN DESIGNS COMPLETED
KITCHEN DESIGN
RENDER VIEWS
PROJECT - TULIP HEIGHTS
ADDRESS - VIP ROAD, ZIRAKPUR
REQUIREMENTS - KITCHEN
STATUS - KITCHEN DESIGNS COMPLETED
KITCHEN DESIGN
RENDER VIEWS
PROJECTS
OF
NK SHARMA
SAVITRY GREEN 1
SAVITRY GREEN 2
WHISTLER HEIGHTS, MOHALI
PROJECT - SAVITRY GREEN - 1
- TYPE – A, KITCHEN 1
ADDRESS - VIP ROAD, ZIRAKPUR
STATUS - KITCHEN DESIGNS COMPLETED
KITCHEN DESIGN
RENDER VIEWS
PROJECT - SAVITRY GREEN - 1
- TYPE – A, KITCHEN 2
ADDRESS - VIP ROAD, ZIRAKPUR
STATUS - KITCHEN DESIGNS COMPLETED
KITCHEN DESIGN
RENDER VIEWS
PROJECT - SAVITRY GREEN - 1
- TYPE – B, KITCHEN 1
ADDRESS - VIP ROAD, ZIRAKPUR
STATUS - KITCHEN DESIGNS COMPLETED
KITCHEN DESIGN
RENDER VIEWS
PROJECT - SAVITRY GREEN - 1
- TYPE – B, KITCHEN 2
ADDRESS - VIP ROAD, ZIRAKPUR
STATUS - KITCHEN DESIGNS COMPLETED
KITCHEN DESIGN
RENDER VIEWS
CLIENT NAME - JASWINDER SAINI
PROJECT - SAVITRY GREEN - 1
ADDRESS - VIP ROAD, ZIRAKPUR
STATUS - KITCHEN DESIGNS COMPLETED
KITCHEN DESIGN
RENDER VIEWS
PROJECT - WHISTLER HEIGHTS
ADDRESS - SECTOR – 91, MOHALI
STATUS - KITCHEN DESIGNS COMPLETED
KITCHEN DESIGN
RENDER VIEWS
CLIENT NAME - IPNEET
PROJECT - WHISTLER HEIGHTS
ADDRESS - SECTOR 91, MOHALI
STATUS - KITCHEN DESIGNS COMPLETED
KITCHEN DESIGN
RENDER VIEWS
CLIENT NAME - GURVINDER SINGH
PROJECT - WHISTLER HEIGHTS
ADDRESS - SECTOR 91, MOHALI
STATUS - KITCHEN DESIGNS COMPLETED
KITCHEN DESIGN
RENDER VIEWS
VANITY
DESIGNS
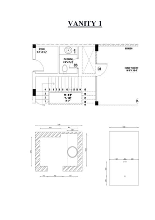
VANITY 1
DESIGN VANITY OPTIONS
VANITY 2
ACTUAL SITE PHOTO
DESIGN VANITY OPTIONS
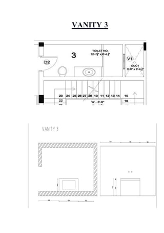
VANITY 3
ACTUAL SITE PHOTO
DESIGN VANITY OPTIONS
VANITY 4
ACTUAL SITE PHOTO
DESIGN VANITY OPTIONS
VANITY 5
ACTUAL SITE PHOTO
DESIGN VANITY OPTIONS
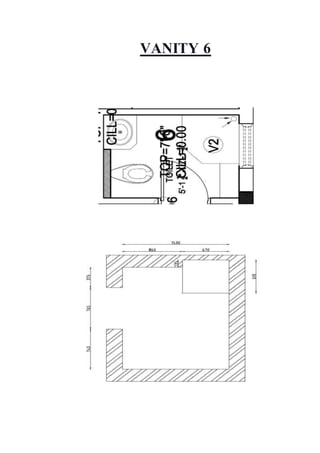
VANITY 6
ACTUAL SITE PHOTO
DESIGN VANITY OPTIONS
WARDROBE
DESIGNS
WARDROBE – 1
WARDROBE – 2
WARDROBE – 3
WARDROBE – 4
WARDROBE – 5
WARDROBE – 6
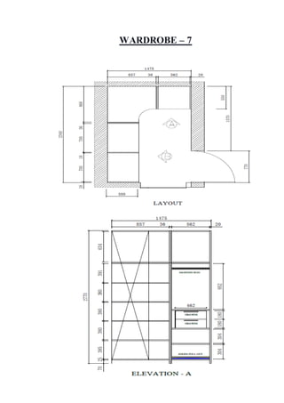
WARDROBE – 7
WARDROBE – 8
WARDROBE – 9
WARDROBE – 10
QUOTATIONS
Here at Maizon during my Training, I also learned How to make the Quotation for the
products we have & then finalize it for the Customers.
Below shown the format of the Quotation.
CONCLUSIONS
Contrary to what some may think, interior design is an art form. Many people think that art is
only displayed on tangible surfaces, such as paper or canvas. Any room an be turned into a
work of art with a little creativity and imagination. Redesigning interiors is a career for many.
Interior designe...
It was a good learning experience, got a chance to do –
 Site Visits
 Project survey & analysis;
 Space planning & furniture arrangement;
 Design concepts;
 Finishes & furnishings;
 Custom designs;
 Customer Handling
 Project coordination & management.
REFERENCE
 www.oppein com
 www.oppein.in
 www.maizon.in
 E-catalogs of the company

Training report - Interior Designing

  • 1.
    QUEST GROUP OFINSTITUTIONS SIX - MONTH TRAINING REPORT AT MAIZON ENTERPRISES PVT. LTD. NAME - SAURAV COURSE - B – TECH BRANCH - CIVIL ENGINEERING SEMESTER - 8th NAME OF INDUSTRY - MAIZON ENTERPRISES PVT. LTD NAME OF INSTITUTE - QUEST GROUP OF INSTITUTIONS
  • 2.
    ACKNOWLEDGMENT Every project bigor small is successful largely due to the effort of a number of wonderful people who have always given their valuable advice or lent a helping hand. I, Saurav, the student of Quest Group of Institutions extremely grateful to “Maizon Enterprises Pvt. Ltd” for the confidence bestowed in me. At this juncture I feel deeply honored in expressing my sincere thanks to our Head of Company Mr. Lalit Sharma for making the resources available at right time and providing valuable insights leading to the successful completion of my project. I take this opportunity to express my profound gratitude and deep regards to my guide Trisha Thapar for her exemplary guidance, monitoring and constant encouragement throughout the course of this thesis. The blessing, help and guidance given by her time to time shall carry me a long way in the journey of life on which I am about to embark. I am obliged to staff members of Maizon Enterprises Pvt. Ltd. for the valuable information provided by them in their respective fields. I am grateful for their cooperation during the period of my assignment. I have taken efforts in this project. However, it would not have been possible without the kind support and help of many individuals and organization. I would like to extend my sincere thanks to all of them. I am highly indebted to OPPEIN Company for their guidance and constant supervision as well as for providing necessary information regarding the project & also for their support in completing the project. I would also like to thank all the faculty members of Quest Group of Institutions for their critical advice and guidance without which this project would not have been possible. Lastly, I thank almighty, my parents, brother and friends for their constant encouragement without which this assignment would not be possible. SAURAV
  • 3.
  • 4.
    CONTENTS SR. NO. DESCRIPTION 1Acknowledgement 2 Training Completion Certificate 3 Profile of the Company 4 Overview of the Project 5 Retail Clients Kitchen Designs 6 Exhibition Kitchen Designs 7 Builders Project Kitchen Designs 8 Projects - Savitry Green - 1 Savitry Green – 2 Whistler Heights – Mohali 9 Vanity Designs 10 Wardrobe Designs 11 Quotations 12 Conclusion 13 References
  • 5.
    PROFILE OF THECOMPANY About – Maizon Enterprises The Maizon Enterprises Pvt. Ltd. is engaged in finding solutions for the customers in various fields. The current focus is on providing products & services from South China (Guangzhou, Foshan, Dong Guan, Shenzhen) to the clients in India for the civil construction business. They are the Authorized Distributors of OPPEIN-The Largest Cabinetry Manufacturer in Asia for Punjab region. Maizon believe in customer satisfaction. Everyone has unique styles, that is why a fully customizable design allows to best meet customer needs and provide the best solutions in helping to build an ideal home. They are having variety of colors, styles and accessories for cabinets, bathroom vanities, wardrobes and countertops. Their Current Project Portfolio comprises of N.K.Sharma Group of Companies (Savitry Greens 1, Savitry Green 2 & Savitry Towers Mohali) 2700+ Flats. They also specialize in providing Sample Flat Interior Design Solutions for upcoming Residential Projects.
  • 6.
    About Oppein OPPEIN foundedin 1994, is now the largest one in Asia, with 300,000 square meters manufacturing center and 8 factories located in GUANGZHOU that houses advanced production equipment HOMAG® from Germany. Specializing in Integrated Kitchen, Wardrobe, Bathroom Cabinet, Solid Surface and Other Home Furniture. They have an 18 years experience in cabinetry industry. Every year, more than 230,000 sets of kitchens cabinets, 128,000 wardrobes and 100,000 Bathroom Cabinets turn out by Oppein with 18-20% annual output growth rate. And the annual turnovers reach to 650,000,000 USD. They have a 6000 sq.m new showroom which is located in the factory. All of the products raw material meets with European E1 standard. There machine use HOMAG which is the best brand name from Germany, and we also build the long term cooperation with Hettich in Germany, Blum in Austria which are the most famous company in the world for the hardware. 6000 people work in OPPEIN group. Furthermore, they have 2000 showrooms in CHINA market, 63 showrooms in the overseas market and the quantity has increased by 20% last year. For over 18 years, we’ve been dedicated to providing unique solutions to our customers. OPPEIN is focused on providing Eco-friendly & user friendly home products, which creates comfortable customer experience. Since its initial introduction of integrated kitchen concept to China in 1994, OPPEIN has been endeavoring on product innovation. With the experience gained from the integrated kitchen cabinets, the concept of Built-Ins has been gradually applying to its successive products. Eg. Wardrobes, bathroom, vanities. and other customized furniture. Kitchen cabinets as well as other products by OPPEIN adopt world advanced manufacture technology and are processed under strict quality control system. in the past 15 years. OPPEIN has become a world-class manufacturer & supplier of integrated kitchens and shared the happiness with millions of families for using OPPEIN‘s products across the world.
  • 7.
    As the leaderof Chinese cabinetry industry. OPPEIN has been dedicating to provide built—in solutions to meet customer’s specific requirements on every single detail by international advanced equipments and techniques. excellent designing concepts and European quality standard. It respects and encourages customers to optimize their ideal plans, which fully satisfy their desires and reflect their tastes on life insisting on improving techniques and designs. OPPEIN has become the benchmark symbol of integrated kitchens in China. New OPPEIN is marching toward the new summit which becomes world-famous brand in cabinetry industry.
  • 8.
    OVERVIEW OF THEPROJECT With the completion of the 6 months long training my experience with firm was excellent. The task of undertaking the training travelled through a dynamic experience. With the constant guidance, valuable suggestions, timely help and heartwarming encouragement rendered to me by all the team members of MAIZON ENTERPRISES PVT.LTD. served as an excellent learning platform. In course of the training I came through the working pattern of the office along with professionalism. Also the basic practical experience at the site helped a lot .Design methods, different construction methods ,basic details of the building elements and on-site experience are to name a few to which I was exposed to. Along with it the firm gave me enough opportunities and encouragement to think independently about the design solutions.
  • 9.
    KITCHEN PARTS Carcass:base cabinets,wall cabinets, tall cabinets Kicker:kickboard, adjustable leg Countertop:acrylic, quarztone Appliances:fridge、range hood、gas stove、microwave、oven、dishwasher etc Hardware:hinges、slides、handles、stationary hook、three-in-one etc. Accessories:sink, faucet, basket, waste bin, rice container etc. Decorative panels:vertical panel, top panel, crown molding, back wall decorative panels etc.
  • 10.
    REQUIREMENTS BEFOREKITCHEN INSTALLATION 1.Electrical Points, Flooring, Tiles on Wall, Plumbing points & Frame of Window, all these should be properly installed. 2. Floor Traps should be properly installed & cover.
  • 11.
    3. Packed materialsof kitchen according to Kitchen Type should be placed on site 4. Equipments & Tools required for installation should be on site
  • 12.
    KITCHEN INSTALLATION PROCESS Measure & mark the wall  Install the Wall cabinets Carcase
  • 13.
     Install theBase cabinets Carcase  Install Fillers
  • 14.
     Lay theCountertop slab  Attach the door shutters & hardware.
  • 15.
     Install KitchenAccessories  Finally, place the Kickboard at bottom
  • 16.
  • 17.
    CLIENT NAME -MR. RAJ BANSAL ADDRESS - RAJGURU NAGAR, LUDHIANA REQUIREMENTS - KITCHEN & INTERIOR DESIGN STATUS - KITCHEN DESIGNS ARE DONE OTHER INTERIOR WORK DISCUSSION IS IN PROCESS KITCHEN DESIGN RENDER VIEWS
  • 19.
    CLIENT NAME -MR. DEVINDER SINGH ADDRESS - JAGRAON, LUDHIANA REQUIREMENTS - KITCHEN STATUS - KITCHEN DESIGNS ARE DONE KITCHEN DESIGN RENDER VIEWS
  • 21.
    CLIENT NAME -MR. GURCHINTEN SINGH ADDRESS - DUGRI, LUDHIANA REQUIREMENTS - KITCHEN STATUS - KITCHEN DESIGNS ARE DONE KITCHEN DESIGN RENDER VIEWS
  • 23.
    CLIENT NAME -MR. JATINDER SINGH ADDRESS - PHASE 7, MOHALI REQUIREMENTS - KITCHEN & OTHER INTERIOR DESIGNS STATUS - FULLY COMPLETED ALL DESIGNS KITCHEN DESIGN RENDER VIEWS
  • 25.
  • 26.
  • 27.
  • 28.
  • 29.
  • 30.
    CLIENT NAME -MR. DHIRO ADDRESS - LUDHIANA REQUIREMENTS - KITCHEN STATUS - KITCHEN DESIGNS COMPLETED KITCHEN DESIGN RENDER VIEWS
  • 32.
    CLIENT NAME -MR. PRANAV MEHRA ADDRESS - SECTOR – 117, MOHALI REQUIREMENTS - KITCHEN STATUS - KITCHEN DESIGNS COMPLETED KITCHEN DESIGN RENDER VIEWS
  • 34.
    CLIENT NAME -MRS. PREETAM KAUR ADDRESS - SECTOR – 71, MOHALI REQUIREMENTS - KITCHEN STATUS - KITCHEN DESIGNS COMPLETED KITCHEN DESIGN RENDER VIEWS
  • 37.
    CLIENT NAME -MR. RAMAN ADDRESS - PHASE 7, MOHALI REQUIREMENTS - KITCHEN STATUS - KITCHEN DESIGNS COMPLETED KITCHEN DESIGN RENDER VIEWS
  • 39.
    CLIENT NAME -MR. TERSEM ADDRESS - PATIALA REQUIREMENTS - KITCHEN STATUS - KITCHEN DESIGNS COMPLETED KITCHEN DESIGN RENDER VIEWS
  • 41.
  • 42.
    EXHIBITION - LUDHINAEXHIBITION ADDRESS - GULMOR HOTEL, LUDHINA REQUIREMENTS - LACQUER & HPL KITCHEN STATUS - KITCHEN DESIGNS COMPLETED KITCHEN DESIGN RENDER VIEWS
  • 44.
  • 45.
    EXHIBITION - CHANDIGARHEXHIBITION ADDRESS - SECTOR – 17 CHANDIGARH REQUIREMENTS - MELAMINE & METAL FOIL KITCHEN STATUS - KITCHEN DESIGNS COMPLETED KITCHEN DESIGN RENDER VIEWS
  • 47.
  • 48.
  • 49.
    PROJECT - ACMEHEIGHTS 2 ADDRESS - CHAJUMAJRA, KHARAR REQUIREMENTS - KITCHEN STATUS - KITCHEN DESIGNS COMPLETED KITCHEN DESIGN RENDER VIEWS
  • 51.
    PROJECT - MONAGREENS ADDRESS - VIP ROAD, ZIRAKPUR REQUIREMENTS - KITCHEN STATUS - KITCHEN DESIGNS COMPLETED KITCHEN DESIGN RENDER VIEWS
  • 53.
    PROJECT - PARKWOOD GLADE ADDRESS - LANDRA – KHARAR ROAD, MOHALI REQUIREMENTS - KITCHEN STATUS - KITCHEN DESIGNS COMPLETED KITCHEN DESIGN RENDER VIEWS
  • 55.
    PROJECT - TULIPHEIGHTS ADDRESS - VIP ROAD, ZIRAKPUR REQUIREMENTS - KITCHEN STATUS - KITCHEN DESIGNS COMPLETED KITCHEN DESIGN RENDER VIEWS
  • 57.
    PROJECTS OF NK SHARMA SAVITRY GREEN1 SAVITRY GREEN 2 WHISTLER HEIGHTS, MOHALI
  • 58.
    PROJECT - SAVITRYGREEN - 1 - TYPE – A, KITCHEN 1 ADDRESS - VIP ROAD, ZIRAKPUR STATUS - KITCHEN DESIGNS COMPLETED KITCHEN DESIGN RENDER VIEWS
  • 60.
    PROJECT - SAVITRYGREEN - 1 - TYPE – A, KITCHEN 2 ADDRESS - VIP ROAD, ZIRAKPUR STATUS - KITCHEN DESIGNS COMPLETED KITCHEN DESIGN RENDER VIEWS
  • 62.
    PROJECT - SAVITRYGREEN - 1 - TYPE – B, KITCHEN 1 ADDRESS - VIP ROAD, ZIRAKPUR STATUS - KITCHEN DESIGNS COMPLETED KITCHEN DESIGN RENDER VIEWS
  • 64.
    PROJECT - SAVITRYGREEN - 1 - TYPE – B, KITCHEN 2 ADDRESS - VIP ROAD, ZIRAKPUR STATUS - KITCHEN DESIGNS COMPLETED KITCHEN DESIGN RENDER VIEWS
  • 66.
    CLIENT NAME -JASWINDER SAINI PROJECT - SAVITRY GREEN - 1 ADDRESS - VIP ROAD, ZIRAKPUR STATUS - KITCHEN DESIGNS COMPLETED KITCHEN DESIGN RENDER VIEWS
  • 68.
    PROJECT - WHISTLERHEIGHTS ADDRESS - SECTOR – 91, MOHALI STATUS - KITCHEN DESIGNS COMPLETED KITCHEN DESIGN RENDER VIEWS
  • 70.
    CLIENT NAME -IPNEET PROJECT - WHISTLER HEIGHTS ADDRESS - SECTOR 91, MOHALI STATUS - KITCHEN DESIGNS COMPLETED KITCHEN DESIGN RENDER VIEWS
  • 72.
    CLIENT NAME -GURVINDER SINGH PROJECT - WHISTLER HEIGHTS ADDRESS - SECTOR 91, MOHALI STATUS - KITCHEN DESIGNS COMPLETED KITCHEN DESIGN RENDER VIEWS
  • 74.
  • 75.
  • 76.
  • 77.
  • 78.
  • 79.
  • 80.
  • 81.
  • 82.
  • 83.
  • 84.
  • 85.
  • 86.
  • 87.
  • 88.
  • 90.
  • 91.
  • 92.
  • 93.
  • 94.
  • 95.
  • 96.
  • 97.
  • 99.
  • 100.
    QUOTATIONS Here at Maizonduring my Training, I also learned How to make the Quotation for the products we have & then finalize it for the Customers. Below shown the format of the Quotation.
  • 101.
    CONCLUSIONS Contrary to whatsome may think, interior design is an art form. Many people think that art is only displayed on tangible surfaces, such as paper or canvas. Any room an be turned into a work of art with a little creativity and imagination. Redesigning interiors is a career for many. Interior designe... It was a good learning experience, got a chance to do –  Site Visits  Project survey & analysis;  Space planning & furniture arrangement;  Design concepts;  Finishes & furnishings;  Custom designs;  Customer Handling  Project coordination & management.
  • 102.
    REFERENCE  www.oppein com www.oppein.in  www.maizon.in  E-catalogs of the company