ỦY BAN NHÂN DÂN THÀNH PHỐ HÀ NỘI - HANOI PEOPLES COMMITTEE
BAN DỰ ÁN ĐƯỜNG SẮT ĐÔ THỊ HÀ NỘI - HANOI METROPOLITAN RAIL TRANSPORT PROJECT BOARD (HRB)
BẢN VẼ THIẾT KẾ KỸ THUẬT
TECHNICAL DESIGN DRAWINGS
DỰ ÁN: TUYẾN ĐƯỜNG SẮT ĐÔ THỊ THÍ ĐIỂM THÀNH PHỐ HÀ NỘI, ĐOẠN NHỔN – GA HÀ NỘI
PROJECT: HANOI PILOT LIGHT METRO LINE, Section Nhon - Hanoi Railway Station
GÓI THẦU: ĐOẠN ĐI TRÊN CAO - Tuyến
PACKAGE: ELEVATED SECTION - Line
MÃ SỐ GÓI THẦU – PACKAGE NUMBER: HPLMLP/CP-01
HẠNG MỤC 3: Cầu vượt Sông Nhuệ
ITEM: SET 3 – Nhue River Bridge
Địa điểm: Huyện Từ Liêm, Quận Cầu Giấy, Quận Ba Đình, Hà Nội
Location: Tu Liem, Cau Giay, Ba Dinh Districts, Ha Noi
PIC-TEC-TRE-WVO-L20-00185-B-3A
Tháng 04/2012 - April 2012
ỦY BAN NHÂN DÂN THÀNH PHỐ HÀ NỘI - HANOI PEOPLES COMMITTEE
BAN DỰ ÁN ĐƯỜNG SẮT ĐÔ THỊ HÀ NỘI - HANOI METROPOLITAN RAIL TRANSPORT PROJECT BOARD (HRB)
BẢN VẼ THIẾT KẾ KỸ THUẬT
TECHNICAL DESIGN DRAWINGS
DỰ ÁN: TUYẾN ĐƯỜNG SẮT ĐÔ THỊ THÍ ĐIỂM THÀNH PHỐ HÀ NỘI, ĐOẠN NHỔN – GA HÀ NỘI
PROJECT: HANOI PILOT LIGHT METRO LINE, Section Nhon - Hanoi Railway Station
GÓI THẦU: ĐOẠN ĐI TRÊN CAO - Tuyến
PACKAGE: ELEVATED SECTION - Line
MÃ SỐ GÓI THẦU – PACKAGE NUMBER: HPLMLP/CP-01
HẠNG MỤC 3: Cầu vượt Sông Nhuệ
ITEM: SET 3 – Nhue River Bridge
Địa điểm: Huyện Từ Liêm, Quận Cầu Giấy, Quận Ba Đình, Hà Nội
Location: Tu Liem, Cau Giay, Ba Dinh Districts, Ha Noi
BAN DỰ ÁN ĐƯỜNG SẮT ĐÔ THỊ HÀ NỘI
HANOI METROPOLITAN RAIL
TRANSPORT PROJECT BOARD
TƯ VẤN THỰC HIỆN DỰ ÁN
PROJECT IMPLEMENTATION
CONSULTANT
Tháng 04/2012 - April 2012
No / STT Drawing Title 1 Drawing Title 2 Tiêu 1 c a b n v Tiêu 2 c a b n v Reference No / S tham chi u
1 ELEVATED SECTION - LINE - SET 3 LIST OF DRAWINGS - SHEET 1/2 O N TRÊN CAO - T P 3 DANH SÁCH CÁC B N V - T 1/2 PIC-TEC-GNS-WOO-L00-92007-B-3A
2 ELEVATED SECTION - LINE - SET 3 LIST OF DRAWINGS - SHEET 2/2 O N TRÊN CAO - T P 3 DANH SÁCH CÁC B N V - T 2/2 PIC-TEC-GNS-WOO-L00-92008-B-3A
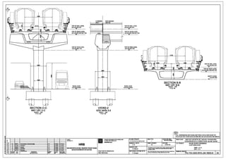
NHUERIVER CROSSING/ VƯ T SÔNGNHU
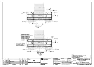
3 NHUE RIVER CROSSING GAD - 1 / 3 VƯ T SÔNGNHU GAD - 1/3 PIC-TEC-GAD-WVO-J04-18001-B-2A
4 NHUE RIVER CROSSING GAD - 2 / 3 VƯ T SÔNGNHU GAD - 2/3 PIC-TEC-GAD-WVO-J04-18002-B-2A
5 NHUE RIVER CROSSING GAD - 3 / 3 VƯ T SÔNGNHU GAD - 3/3 PIC-TEC-GAD-WVO-J04-18003-B-2A
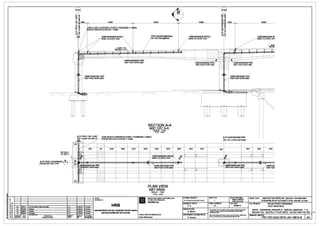
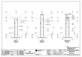
6 NHUE RIVER CROSSING GAD - SEGMENT ARRANGEMENT - 1 / 3 VƯ T SÔNGNHU GAD - B TRÍ O N 1/3 PIC-TEC-GAD-WVO-J04-18007-B-2A
7 NHUE RIVER CROSSING GAD - SEGMENT ARRANGEMENT - 2 / 3 VƯ T SÔNGNHU GAD - B TRÍ O N 2/3 PIC-TEC-GAD-WVO-J04-18008-B-2A
8 NHUE RIVER CROSSING GAD - SEGMENT ARRANGEMENT - 3 / 3 VƯ T SÔNGNHU GAD - B TRÍ O N 3/3 PIC-TEC-GAD-WVO-J04-18009-B-2A
9 NHUE RIVER CROSSING CONST METHOD - 1 / 3 VƯ T SÔNGNHU PHƯƠNGPHÁP THI CÔNG- 1/3 PIC-TEC-GCM-WVO-J04-18011-B-3A
10 NHUE RIVER CROSSING CONST METHOD - 2 / 3 VƯ T SÔNGNHU PHƯƠNGPHÁP THI CÔNG- 2/3 PIC-TEC-GCM-WVO-J04-18012-B-3A
11 NHUE RIVER CROSSING CONST METHOD - 3 / 3 VƯ T SÔNGNHU PHƯƠNGPHÁP THI CÔNG- 3/3 PIC-TEC-GCM-WVO-J04-18013-B-3A
12
NHUE RIVER CROSSING SUBSTRUCTURES - P151-P154 - CONC OUT VƯ T SÔNGNHU K T C U T NGDƯ I - P151-P154 - K T C U BÊ
TÔNG
PIC-TEC-GDO-WVO-J04-18100-B-3A
13
NHUE RIVER CROSSING SUBSTRUCTURES - P152-P153 - CONC OUT - 1 / 2 VƯ T SÔNGNHU K T C U T NGDƯ I - P152-P153 - K T C U BÊ
TÔNG- 1/2
PIC-TEC-GDO-WVO-J04-18101-B-3A
14 NHUE RIVER CROSSING PILES - P151-P154 - REINF VƯ T SÔNGNHU C C - P151 - P154 - C T THÉP PIC-TEC-GRR-WVO-J04-18110-B-3A
15 NHUE RIVER CROSSING PILES - P152-P153 - REINF VƯ T SÔNGNHU C C - P152 - P153 - C T THÉP PIC-TEC-GRR-WVO-J04-18113-B-3A
16 NHUE RIVER CROSSING PILE CAPS - P151-P154 - REINF - PLAN VIEW VƯ T SÔNGNHU MŨ C C - P151 - P154 - C T THÉP - M T B NG PIC-TEC-GRR-WVO-J04-18130-B-3A
17 NHUE RIVER CROSSING PILE CAPS - P151-P154 - REINF - SECTIONS VƯ T SÔNGNHU MŨ C C - P151 - P154 - C T THÉP - M T C T PIC-TEC-GRR-WVO-J04-18131-B-3A
18 NHUE RIVER CROSSING PILE CAPS - P152-P153 - REINF - PLAN VIEW VƯ T SÔNGNHU MŨ C C - P152 - P153 - C T THÉP - M T B NG PIC-TEC-GRR-WVO-J04-18140-B-3A
19 NHUE RIVER CROSSING PILE CAPS - P152-P153 - REINF - SECTIONS VƯ T SÔNGNHU MŨ C C - P152 - P153 - C T THÉP - M T C T PIC-TEC-GRR-WVO-J04-18141-B-3A
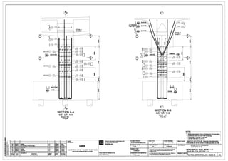
20 NHUE RIVER CROSSING VERTICAL SETTINGOUT VƯ T SÔNGNHU B TRÍ TRÊN M T NG PIC-TEC-GAD-WVO-J04-18151-B-2A
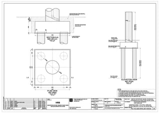
21 NHUE RIVER CROSSING ELASTOMERIC BEARING VƯ T SÔNGNHU G I C U CAO SU PIC-TEC-GAD-WVO-J04-18152-B-2A
22 NHUE RIVER CROSSING PIERS - P151 - REINF VƯ T SÔNGNHU TR - P151 - C T THÉP PIC-TEC-GRR-WVO-J04-18210-B-3A
23 NHUE RIVER CROSSING PIERS - P151 - REINF VƯ T SÔNGNHU TR - P151 - C T THÉP PIC-TEC-GRR-WVO-J04-18211-B-3A
24 NHUE RIVER CROSSING PIERS - P151 - REINF - BAR LIST VƯ T SÔNGNHU TR - P151 - C T THÉP - DANH M C C T THÉP PIC-TEC-GRR-WVO-J04-18212-B-3A
25 NHUE RIVER CROSSING PIERS-PIERCAP - P152 - REINF - 1 / 3 VƯ T SÔNGNHU TR - MŨ TR - P152-C T THÉP-1/3 PIC-TEC-GRR-WVO-J04-18220-B-3A
26 NHUE RIVER CROSSING PIERS-PIERCAP - P152 - REINF - 2 / 3 VƯ T SÔNGNHU TR - MŨ TR - P152-C T THÉP-2/3 PIC-TEC-GRR-WVO-J04-18221-B-3A
27 NHUE RIVER CROSSING PIERS-PIERCAP - P152 - REINF - 3 / 3 VƯ T SÔNGNHU TR - MŨ TR - P152-C T THÉP-3/3 PIC-TEC-GRR-WVO-J04-18222-B-3A
28
NHUE RIVER CROSSING PIERS-PIERCAP - P152 - REINF - BAR LIST - 1 / 2 VƯ T SÔNGNHU TR - MŨ TR - P152 - C T THÉP - DANH M C
C T THÉP - 1/2
PIC-TEC-GRR-WVO-J04-18223-B-2A
29
NHUE RIVER CROSSING PIERS-PIERCAP - P152 - REINF - BAR LIST - 2 / 2 VƯ T SÔNGNHU TR - MŨ TR - P152 - C T THÉP - DANH M C
C T THÉP - 2/2
PIC-TEC-GRR-WVO-J04-18224-B-2A
30 NHUE RIVER CROSSING PIERS-PIERCAP - P153 - REINF - 1 / 3 VƯ T SÔNGNHU TR - MŨ TR - P153-C T THÉP-1/3 PIC-TEC-GRR-WVO-J04-18230-B-3A
31 NHUE RIVER CROSSING PIERS-PIERCAP - P153 - REINF - 2 / 3 VƯ T SÔNGNHU TR - MŨ TR - P153-C T THÉP-2/3 PIC-TEC-GRR-WVO-J04-18231-B-3A
32 NHUE RIVER CROSSING PIERS-PIERCAP - P153 - REINF - 3 / 3 VƯ T SÔNGNHU TR - MŨ TR - P153-C T THÉP-3/3 PIC-TEC-GRR-WVO-J04-18232-B-3A
33
NHUE RIVER CROSSING PIERS-PIERCAP - P153 - REINF - BAR LIST - 1 / 2 VƯ T SÔNGNHU TR - MŨ TR - P153 - C T THÉP - DANH M C
C T THÉP - 1/2
PIC-TEC-GRR-WVO-J04-18233-B-2A
34
NHUE RIVER CROSSING PIERS-PIERCAP - P153 - REINF - BAR LIST - 2 / 2 VƯ T SÔNGNHU TR - MŨ TR - P153 - C T THÉP - DANH M C
C T THÉP - 2/2
PIC-TEC-GRR-WVO-J04-18234-B-2A
35 NHUE RIVER CROSSING PIERS - P154 - REINF VƯ T SÔNGNHU TR - P154 - C T THÉP PIC-TEC-GRR-WVO-J04-18240-B-3A
36 NHUE RIVER CROSSING PIERS - P154 - REINF VƯ T SÔNGNHU TR - P154 - C T THÉP PIC-TEC-GRR-WVO-J04-18241-B-3A
37 NHUE RIVER CROSSING PIERS - P154 - REINF - BAR LIST VƯ T SÔNGNHU TR - P154 - C T THÉP - DANH M C C T THÉP PIC-TEC-GRR-WVO-J04-18242-B-3A
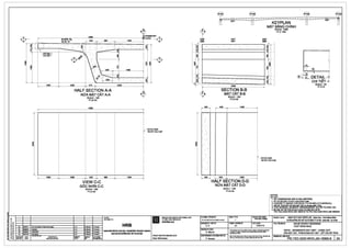
38 NHUE RIVER CROSSING PIER CAPS - P151 - CONC OUT VƯ T SÔNGNHU MŨ TR - P151 - K T C U BÊ TÔNG PIC-TEC-GDO-WVO-J04-18250-B-2A
39 NHUE RIVER CROSSING PIER CAPS - P151 - DRAINAGE VƯ T SÔNGNHU MŨ TR - P151 - THOÁT NƯ C PIC-TEC-GAD-WVO-J04-18251-B-2A
40 NHUE RIVER CROSSING PIER CAPS - P154 - CONC OUT VƯ T SÔNGNHU MŨ TR - P154 - K T C U BÊ TÔNG PIC-TEC-GDO-WVO-J04-18252-B-2A
41 NHUE RIVER CROSSING PIER CAPS - P154 - DRAINAGE VƯ T SÔNGNHU MŨ TR - P154 - THOÁT NƯ C PIC-TEC-GAD-WVO-J04-18253-B-2A
42 NHUE RIVER CROSSING PIER CAPS - P151-P154 - REINF - 1 / 7 VƯ T SÔNGNHU MŨ TRU - P151 - P154 - C T THÉP - 1/7 PIC-TEC-GRR-WVO-J04-18260-B-3A
43 NHUE RIVER CROSSING PIER CAPS - P151-P154 - REINF - 2 / 7 VƯ T SÔNGNHU MŨ TRU - P151 - P154 - C T THÉP - 2/7 PIC-TEC-GRR-WVO-J04-18261-B-3A
44 NHUE RIVER CROSSING PIER CAPS - P151-P154 - REINF - 3 / 7 VƯ T SÔNGNHU MŨ TRU - P151 - P154 - C T THÉP - 3/7 PIC-TEC-GRR-WVO-J04-18262-B-3A
45 NHUE RIVER CROSSING PIER CAPS - P151-P154 - REINF - 4 / 7 VƯ T SÔNGNHU MŨ TRU - P151 - P154 - C T THÉP - 4/7 PIC-TEC-GRR-WVO-J04-18263-B-3A
46 NHUE RIVER CROSSING PIER CAPS - P151-P154 - REINF - 5 / 7 VƯ T SÔNGNHU MŨ TRU - P151 - P154 - C T THÉP - 5/7 PIC-TEC-GRR-WVO-J04-18264-B-3A
47 NHUE RIVER CROSSING PIER CAPS - P151-P154 - REINF - 6 / 7 VƯ T SÔNGNHU MŨ TRU - P151 - P154 - C T THÉP - 6/7 PIC-TEC-GRR-WVO-J04-18265-B-3A
48 NHUE RIVER CROSSING PIER CAPS - P151-P154 - REINF - 7 / 7 VƯ T SÔNGNHU MŨ TRU - P151 - P154 - C T THÉP - 7/7 PIC-TEC-GRR-WVO-J04-18266-B-3A
49
NHUE RIVER CROSSING DECK - SEGMENTS ES1-ES2 - CONC OUT - 1 / 2 VƯ T SÔNGNHU B N M T C U - PHÂN O N ES1 -ES2 - K T
C U BÊ TÔNG- 1/2
PIC-TEC-GDO-WVO-J04-18300-B-2A
50
NHUE RIVER CROSSING DECK - SEGMENTS ES1-ES2 - CONC OUT - 2 / 2 VƯ T SÔNGNHU B N M T C U - PHÂN O N ES1 -ES2 - K T
C U BÊ TÔNG- 2/2
PIC-TEC-GDO-WVO-J04-18301-B-2A
51
NHUE RIVER CROSSING DECK - SEGMENTS S1-S3 - CONC OUT VƯ T SÔNGNHU B N M T C U - PHÂN O N S1 -S3 - K T C U
BÊ TÔNG
PIC-TEC-GDO-WVO-J04-18302-B-2A
52
NHUE RIVER CROSSING DECK - SEGMENTS SA9'-SB9' - CONC OUT VƯ T SÔNGNHU B N M T C U - PHÂN O N SA9'-SB9' - K T
C U BÊ TÔNG
PIC-TEC-GDO-WVO-J04-18303-B-2A
53
NHUE RIVER CROSSING DECK - SEGMENTS SA8'-SB8' - CONC OUT VƯ T SÔNGNHU B N M T C U - PHÂN O N SA8'-SB8' - K T
C U BÊ TÔNG
PIC-TEC-GDO-WVO-J04-18304-B-2A
54
NHUE RIVER CROSSING DECK - SEGMENTS SA7'-SB7' - CONC OUT VƯ T SÔNGNHU B N M T C U - PHÂN O N SA7'-SB7' - K T
C U BÊ TÔNG
PIC-TEC-GDO-WVO-J04-18305-B-2A
55
NHUE RIVER CROSSING DECK - SEGMENTS SA6'-SB6' - CONC OUT VƯ T SÔNGNHU B N M T C U - PHÂN O N SA6'-SB6' - K T
C U BÊ TÔNG
PIC-TEC-GDO-WVO-J04-18306-B-2A
56
NHUE RIVER CROSSING DECK - SEGMENTS SA5'-SA5-SB5-SB5' - CONC
OUT
VƯ T SÔNGNHU B N M T C U - PHÂN O N SA5'-SA5-SB5 -
SB5'- K T C U BÊ TÔNG
PIC-TEC-GDO-WVO-J04-18307-B-2A
57
NHUE RIVER CROSSING DECK - SEGMENTS SA4'-SA4-SB4-SB4' - CONC
OUT
VƯ T SÔNGNHU B N M T C U - PHÂN O N SA4'-SA4-SB4 -
SB4'- K T C U BÊ TÔNG
PIC-TEC-GDO-WVO-J04-18308-B-2A
58
NHUE RIVER CROSSING DECK - SEGMENTS SA3'-SA3-SB3-SB3' - CONC
OUT
VƯ T SÔNGNHU B N M T C U - PHÂN O N SA3'-SA3-SB3-
SB3' - K T C U BÊ TÔNG
PIC-TEC-GDO-WVO-J04-18309-B-2A
59
NHUE RIVER CROSSING DECK - SEGMENTS SA2'-SA2-SB2-SB2' - CONC
OUT
VƯ T SÔNGNHU B N M T C U - PHÂN O N SA2'-SA2-SB2 -
SB2'- K T C U BÊ TÔNG
PIC-TEC-GDO-WVO-J04-18310-B-2A
60
NHUE RIVER CROSSING DECK - SEGMENTS SA1'-SA1-SB1-SB1' - CONC
OUT
VƯ T SÔNGNHU B N M T C U - PHÂN O N SA1'-SA1-SB1 -
SB1'- K T C U BÊ TÔNG
PIC-TEC-GDO-WVO-J04-18311-B-2A
61
NHUE RIVER CROSSING DECK - SEGMENT PS1 - CONC OUT - 1 / 2 VƯ T SÔNGNHU B N M T C U - PHÂN O N PS1 - K T C U BÊ
TÔNG- 1/2
PIC-TEC-GDO-WVO-J04-18312-B-2A
62
NHUE RIVER CROSSING DECK - SEGMENT PS1 - CONC OUT - 2 / 2 VƯ T SÔNGNHU B N M T C U - PHÂN O N PS1 - K T C U BÊ
TÔNG- 2/2
PIC-TEC-GDO-WVO-J04-18313-B-2A
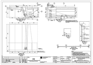
63
NHUE RIVER CROSSING DECK - SEGMENT PS2 - CONC OUT - 1 / 2 VƯ T SÔNGNHU B N M T C U - PHÂN O N PS2 - K T C U BÊ
TÔNG- 1/2
PIC-TEC-GDO-WVO-J04-18314-B-2A
64
NHUE RIVER CROSSING DECK - SEGMENT PS2 - CONC OUT - 2 / 2 VƯ T SÔNGNHU B N M T C U - PHÂN O N PS2 - K T C U BÊ
TÔNG- 2/2
PIC-TEC-GDO-WVO-J04-18315-B-2A
65
NHUE RIVER CROSSING DECK - SEGMENTS SA6-SB6 - CONC OUT VƯ T SÔNGNHU B N M T C U - PHÂN O N SA6 -SB6 - K T
C U BÊ TÔNG
PIC-TEC-GDO-WVO-J04-18316-B-2A
66
NHUE RIVER CROSSING DECK - SEGMENTS SA7-SB7 - CONC OUT VƯ T SÔNGNHU B N M T C U - PHÂN O N SA7 -SB7 - K T
C U BÊ TÔNG
PIC-TEC-GDO-WVO-J04-18317-B-2A
67
NHUE RIVER CROSSING DECK - SEGMENTS SA8-SB8 - CONC OUT VƯ T SÔNGNHU B N M T C U - PHÂN O N SA8 -SB8 - K T
C U BÊ TÔNG
PIC-TEC-GDO-WVO-J04-18318-B-2A
68
NHUE RIVER CROSSING DECK - SEGMENTS SA9-SB9 - CONC OUT VƯ T SÔNGNHU B N M T C U - PHÂN O N SA9 -SB9 - K T
C U BÊ TÔNG
PIC-TEC-GDO-WVO-J04-18319-B-2A
69
NHUE RIVER CROSSING DECK - BLISTER TYPE 1-2-3-5-6 - CONC OUT VƯ T SÔNGNHU B N M T C U - BLISTER TYPE 1-2-3-5-6 - K T
C U BÊ TÔNG
PIC-TEC-GDO-WVO-J04-18330-B-2A
70
NHUE RIVER CROSSING DECK - BLISTER TYPE 4 - CONC OUT VƯ T SÔNGNHU B N M T C U - BLISTER TYPE 4 - K T C U BÊ
TÔNG
PIC-TEC-GDO-WVO-J04-18332-B-2A
71
NHUE RIVER CROSSING DECK - DEVIATOR TYPE 1 - CONC OUT VƯ T SÔNGNHU B N M T C U - LO I B CHUY N HƯ NG1 -
K T C U BÊ TÔNG
PIC-TEC-GDO-WVO-J04-18350-B-2A
72
NHUE RIVER CROSSING DECK - BLISTER TYPE 7 - CONC OUT VƯ T SÔNGNHU B N M T C U - BLISTER TYPE 7 - K T C U BÊ
TÔNG
PIC-TEC-GDO-WVO-J04-18355-B-2A
73 NHUE RIVER CROSSING DECK - PT - READYRECKONER VƯ T SÔNGNHU B N M T C U - PT - B NGTÍNH S N PIC-TEC-GST-WVO-J04-18400-B-2A
74
NHUE RIVER CROSSING DECK - PT - PLAN VIEW & ELEVATION - 1 / 7 VƯ T SÔNGNHU B N M T C U - PT - M T B NG& M T NG
- 1/7
PIC-TEC-GST-WVO-J04-18401-B-2A
75
NHUE RIVER CROSSING DECK - PT - PLAN VIEW & ELEVATION - 2 / 7 VƯ T SÔNGNHU B N M T C U - PT - M T B NG& M T NG
- 2/7
PIC-TEC-GST-WVO-J04-18402-B-2A
76
NHUE RIVER CROSSING DECK - PT - PLAN VIEW & ELEVATION - 3 / 7 VƯ T SÔNGNHU B N M T C U - PT - M T B NG& M T NG
- 3/7
PIC-TEC-GST-WVO-J04-18403-B-2A
77
NHUE RIVER CROSSING DECK - PT - PLAN VIEW & ELEVATION - 4 / 7 VƯ T SÔNGNHU B N M T C U - PT - M T B NG& M T NG
- 4/7
PIC-TEC-GST-WVO-J04-18404-B-2A
78
NHUE RIVER CROSSING DECK - PT - PLAN VIEW & ELEVATION - 5 / 7 VƯ T SÔNGNHU B N M T C U - PT - M T B NG& M T NG
- 5/7
PIC-TEC-GST-WVO-J04-18405-B-2A
79
NHUE RIVER CROSSING DECK - PT - PLAN VIEW & ELEVATION - 6 / 7 VƯ T SÔNGNHU B N M T C U - PT - M T B NG& M T NG
- 6/7
PIC-TEC-GST-WVO-J04-18406-B-2A
80
NHUE RIVER CROSSING DECK - PT - PLAN VIEW & ELEVATION - 7 / 7 VƯ T SÔNGNHU B N M T C U - PT - M T B NG& M T NG
- 7/7
PIC-TEC-GST-WVO-J04-18407-B-2A
81
NHUE RIVER CROSSING DECK - PT - SUMMARYAND SEQUENCES VƯ T SÔNGNHU B N M T C U - PT - TÓM T T VÀ CÁC TRÌNH
T
PIC-TEC-GST-WVO-J04-18408-B-2A
82 NHUE RIVER CROSSING DECK - PT - CROSS SECTIONS - 1 / 10 VƯ T SÔNGNHU B N M T C U - PT - M T C T - 1/10 PIC-TEC-GST-WVO-J04-18410-B-2A
83 NHUE RIVER CROSSING DECK - PT - CROSS SECTIONS - 2 / 10 VƯ T SÔNGNHU B N M T C U - PT - M T C T - 2/10 PIC-TEC-GST-WVO-J04-18411-B-2A
84 NHUE RIVER CROSSING DECK - PT - CROSS SECTIONS - 3 / 10 VƯ T SÔNGNHU B N M T C U - PT - M T C T - 3/10 PIC-TEC-GST-WVO-J04-18412-B-2A
85 NHUE RIVER CROSSING DECK - PT - CROSS SECTIONS - 4 / 10 VƯ T SÔNGNHU B N M T C U - PT - M T C T - 4/10 PIC-TEC-GST-WVO-J04-18413-B-2A
86 NHUE RIVER CROSSING DECK - PT - CROSS SECTIONS - 5 / 10 VƯ T SÔNGNHU B N M T C U - PT - M T C T - 5/10 PIC-TEC-GST-WVO-J04-18414-B-2A
87 NHUE RIVER CROSSING DECK - PT - CROSS SECTIONS - 6 / 10 VƯ T SÔNGNHU B N M T C U - PT - M T C T - 6/10 PIC-TEC-GST-WVO-J04-18415-B-2A
88 NHUE RIVER CROSSING DECK - PT - CROSS SECTIONS - 7 / 10 VƯ T SÔNGNHU B N M T C U - PT - M T C T - 7/10 PIC-TEC-GST-WVO-J04-18416-B-2A
89 NHUE RIVER CROSSING DECK - PT - CROSS SECTIONS - 8 / 10 VƯ T SÔNGNHU B N M T C U - PT - M T C T - 8/10 PIC-TEC-GST-WVO-J04-18417-B-2A
90 NHUE RIVER CROSSING DECK - PT - CROSS SECTIONS - 9 / 10 VƯ T SÔNGNHU B N M T C U - PT - M T C T - 9/10 PIC-TEC-GST-WVO-J04-18418-B-2A
91 NHUE RIVER CROSSING DECK - PT - CROSS SECTIONS - 10 / 10 VƯ T SÔNGNHU B N M T C U - PT - M T C T - 10/10 PIC-TEC-GST-WVO-J04-18419-B-2A
92
NHUE RIVER CROSSING DECK - PT - FUTURE ADDITIONAL PT - 1 / 3 VƯ T SÔNGNHU B N M T C U - PT - PT B SUNGTƯƠNGLAI -
1/3
PIC-TEC-GST-WVO-J04-18450-B-2A
93
NHUE RIVER CROSSING DECK - PT - FUTURE ADDITIONAL PT - 2 / 3 VƯ T SÔNGNHU B N M T C U - PT - PT B SUNGTƯƠNGLAI -
2/3
PIC-TEC-GST-WVO-J04-18451-B-2A
94
NHUE RIVER CROSSING DECK - PT - FUTURE ADDITIONAL PT - 3 / 3 VƯ T SÔNGNHU B N M T C U - PT - PT B SUNGTƯƠNGLAI -
3/3
PIC-TEC-GST-WVO-J04-18452-B-2A
95 NHUE RIVER CROSSING DECK - PT - EMERGENCYPT VƯ T SÔNGNHU B N M T C U - DƯL - DƯL D PHÒNG PIC-TEC-GST-WVO-J04-18460-B-2A
96
NHUE RIVER CROSSING DECK - SA1-SA1'-SB1-SB1' - REINF - 1 / 2 VƯ T SÔNGNHU B N M T C U - SA1-SA1'-SB1-SB1' - C T THÉP
1/2
PIC-TEC-GRR-WVO-J04-18500-B-3A
97
NHUE RIVER CROSSING DECK - SA1-SA1'-SB1-SB1' - REINF - BAR LIST - 2 /
2
VƯ T SÔNGNHU B N M T C U - SA1-SA1'-SB1-SB1' - C T THÉP -
DANH M C THANH - 2/2
PIC-TEC-GRR-WVO-J04-18501-B-2A
98 NHUE RIVER CROSSING DECK - SA2'-SB2' - REINF - 1 / 2 VƯ T SÔNGNHU B N M T C U - SA2'-SB2' - C T THÉP 1/2 PIC-TEC-GRR-WVO-J04-18504-B-3A
99
NHUE RIVER CROSSING DECK - SA2'-SB2' - REINF - BAR LIST - 2 / 2 VƯ T SÔNGNHU B N M T C U - SA2'-SB2' - C T THÉP - DANH
M C THANH - 2/2
PIC-TEC-GRR-WVO-J04-18505-B-2A
100 NHUE RIVER CROSSING DECK - SA2-SB2 - REINF - 1 / 2 VƯ T SÔNGNHU B N M T C U - SA2-SB2 - C T THÉP 1/2 PIC-TEC-GRR-WVO-J04-18508-B-3A
101
NHUE RIVER CROSSING DECK - SA2-SB2 - REINF - BAR LIST - 2 / 2 VƯ T SÔNGNHU B N M T C U - SA2-SB2 - C T THÉP - DANH
M C THANH - 2/2
PIC-TEC-GRR-WVO-J04-18509-B-2A
102 NHUE RIVER CROSSING DECK - SA3'-SB3' - REINF - 1 / 2 VƯ T SÔNGNHU B N M T C U - SA3'-SB3' - C T THÉP 1/2 PIC-TEC-GRR-WVO-J04-18512-B-3B
103
NHUE RIVER CROSSING DECK - SA3'-SB3' - REINF - BAR LIST - 2 / 2 VƯ T SÔNGNHU B N M T C U - SA3'-SB3' - C T THÉP - DANH
M C THANH - 2/2
PIC-TEC-GRR-WVO-J04-18513-B-3A
104 NHUE RIVER CROSSING DECK - SA3-SB3 - REINF - 1 / 2 VƯ T SÔNGNHU B N M T C U - SA3-SB3 - C T THÉP 1/2 PIC-TEC-GRR-WVO-J04-18516-B-3B
105
NHUE RIVER CROSSING DECK - SA3-SB3 - REINF - BAR LIST - 2 / 2 VƯ T SÔNGNHU B N M T C U - SA3-SB3 - C T THÉP - DANH
M C THANH - 2/2
PIC-TEC-GRR-WVO-J04-18517-B-3A
106 NHUE RIVER CROSSING DECK - SA4'-SB4' - REINF - 1 / 2 VƯ T SÔNGNHU B N M T C U - SA4'-SB4' - C T THÉP 1/2 PIC-TEC-GRR-WVO-J04-18520-B-3B
107
NHUE RIVER CROSSING DECK - SA4'-SB4' - REINF - BAR LIST - 2 / 2 VƯ T SÔNGNHU B N M T C U - SA4'-SB4' - C T THÉP - DANH
M C THANH - 2/2
PIC-TEC-GRR-WVO-J04-18521-B-3A
108 NHUE RIVER CROSSING DECK - SA4-SB4 - REINF - 1 / 2 VƯ T SÔNGNHU B N M T C U - SA4-SB4 - C T THÉP 1/2 PIC-TEC-GRR-WVO-J04-18524-B-3B
109
NHUE RIVER CROSSING DECK - SA4-SB4 - REINF - BAR LIST - 2 / 2 VƯ T SÔNGNHU B N M T C U - SA4-SB4 - C T THÉP - DANH
M C THANH - 2/2
PIC-TEC-GRR-WVO-J04-18525-B-3A
No / STT Drawing Title 1 Drawing Title 2 Tiêu 1 c a b n v Tiêu 2 c a b n v Reference No / S tham chi u
110 NHUE RIVER CROSSING DECK - SA5'-SB5' - REINF - 1 / 2 VƯ T SÔNGNHU B N M T C U - SA5'-SB5' - C T THÉP 1/2 PIC-TEC-GRR-WVO-J04-18528-B-3B
111
NHUE RIVER CROSSING DECK - SA5'-SB5' - REINF - BAR LIST - 2 / 2 VƯ T SÔNGNHU B N M T C U - SA5'-SB5' - C T THÉP - DANH
M C THANH - 2/2
PIC-TEC-GRR-WVO-J04-18529-B-3A
112 NHUE RIVER CROSSING DECK - SA5-SB5 - REINF - 1 / 2 VƯ T SÔNGNHU B N M T C U - SA5-SB5 - C T THÉP 1/2 PIC-TEC-GRR-WVO-J04-18532-B-3B
113
NHUE RIVER CROSSING DECK - SA5-SB5 - REINF - BAR LIST - 2 / 2 VƯ T SÔNGNHU B N M T C U - SA5-SB5 - C T THÉP - DANH
M C THANH - 2/2
PIC-TEC-GRR-WVO-J04-18533-B-3A
114 NHUE RIVER CROSSING DECK - SA6'-SB6' - REINF - 1 / 2 VƯ T SÔNGNHU B N M T C U - SA6'-SB6' - C T THÉP 1/2 PIC-TEC-GRR-WVO-J04-18536-B-3A
115
NHUE RIVER CROSSING DECK - SA6'-SB6' - REINF - BAR LIST - 2 / 2 VƯ T SÔNGNHU B N M T C U - SA6'-SB6' - C T THÉP - DANH
M C THANH - 2/2
PIC-TEC-GRR-WVO-J04-18537-B-2A
116 NHUE RIVER CROSSING DECK - SA6-SB6 - REINF - 1 / 2 VƯ T SÔNGNHU B N M T C U - SA6-SB6 - C T THÉP 1/2 PIC-TEC-GRR-WVO-J04-18540-B-3A
117
NHUE RIVER CROSSING DECK - SA6-SB6 - REINF - BAR LIST - 1 / 2 VƯ T SÔNGNHU B N M T C U - SA6-SB6 - C T THÉP - DANH
M C THANH - 1/2
PIC-TEC-GRR-WVO-J04-18541-B-2A
118 NHUE RIVER CROSSING DECK - SA7'-SB7' - REINF - 1 / 2 VƯ T SÔNGNHU B N M T C U - SA7'-SB7' - C T THÉP 1/2 PIC-TEC-GRR-WVO-J04-18544-B-3A
119
NHUE RIVER CROSSING DECK - SA7'-SB7' - REINF - BAR LIST - 1 / 2 VƯ T SÔNGNHU B N M T C U - SA7'-SB7' - C T THÉP - DANH
M C THANH - 1/2
PIC-TEC-GRR-WVO-J04-18545-B-2A
120 NHUE RIVER CROSSING DECK - SA7-SB7 - REINF - 1 / 2 VƯ T SÔNGNHU B N M T C U - SA7-SB7 - C T THÉP 1/2 PIC-TEC-GRR-WVO-J04-18548-B-3A
121
NHUE RIVER CROSSING DECK - SA7-SB7 - REINF - BAR LIST - 1 / 2 VƯ T SÔNGNHU B N M T C U - SA7-SB7 - C T THÉP - DANH
M C THANH - 1/2
PIC-TEC-GRR-WVO-J04-18549-B-2A
122 NHUE RIVER CROSSING DECK - SA8'-SB8' - REINF - 1 / 2 VƯ T SÔNGNHU B N M T C U - SA8'-SB8' - C T THÉP 1/2 PIC-TEC-GRR-WVO-J04-18552-B-3A
123
NHUE RIVER CROSSING DECK - SA8'-SB8' - REINF - BAR LIST - 1 / 2 VƯ T SÔNGNHU B N M T C U - SA8'-SB8' - C T THÉP - DANH
M C THANH - 1/2
PIC-TEC-GRR-WVO-J04-18553-B-2A
124 NHUE RIVER CROSSING DECK - SA8-SB8 - REINF - 1 / 2 VƯ T SÔNGNHU B N M T C U - SA8-SB8 - C T THÉP 1/2 PIC-TEC-GRR-WVO-J04-18556-B-3A
125
NHUE RIVER CROSSING DECK - SA8-SB8 - REINF - BAR LIST - 1 / 2 VƯ T SÔNGNHU B N M T C U - SA8-SB8 - C T THÉP - DANH
M C THANH - 1/2
PIC-TEC-GRR-WVO-J04-18557-B-2A
126 NHUE RIVER CROSSING DECK - SA9'-SB9' - REINF - 1 / 2 VƯ T SÔNGNHU B N M T C U - SA9'-SB9' - C T THÉP 1/2 PIC-TEC-GRR-WVO-J04-18560-B-3A
127
NHUE RIVER CROSSING DECK - SA9'-SB9' - REINF - BAR LIST - 1 / 2 VƯ T SÔNGNHU B N M T C U - SA9'-SB9' - C T THÉP - DANH
M C THANH - 1/2
PIC-TEC-GRR-WVO-J04-18561-B-2A
128 NHUE RIVER CROSSING DECK - SA9-SB9 - REINF - 2 / 2 VƯ T SÔNGNHU B N M T C U - SA9-SB9 - C T THÉP 1/2 PIC-TEC-GRR-WVO-J04-18564-B-3A
129
NHUE RIVER CROSSING DECK - SA9-SB9 - REINF - BAR LIST - 1 / 2 VƯ T SÔNGNHU B N M T C U - SA9-SB9 - C T THÉP - DANH
M C THANH - 1/2
PIC-TEC-GRR-WVO-J04-18565-B-2A
130 NHUE RIVER CROSSING DECK - S3 - REINF - 2 / 2 VƯ T SÔNGNHU B N M T C U - S3 - C T THÉP 2/2 PIC-TEC-GRR-WVO-J04-18568-B-3A
131
NHUE RIVER CROSSING DECK - S3 - REINF - BAR LIST - 2 / 2 VƯ T SÔNGNHU B N M T C U - S3- C T THÉP - DANH M C
THANH - 2/2
PIC-TEC-GRR-WVO-J04-18569-B-2A
132 NHUE RIVER CROSSING DECK - S1-S2 - REINF - 2 / 2 VƯ T SÔNGNHU B N M T C U - S1-S2 - C T THÉP 2/2 PIC-TEC-GRR-WVO-J04-18572-B-3A
133
NHUE RIVER CROSSING DECK - S1-S2 - REINF - BAR LIST - 2 / 2 VƯ T SÔNGNHU B N M T C U -S1-S2 - C T THÉP - DANH M C
THANH - 2/2
PIC-TEC-GRR-WVO-J04-18573-B-2A
134 NHUE RIVER CROSSING DECK - PS1-PS2 - REINF - 1 / 5 VƯ T SÔNGNHU B N M T C U - PS1-PS2 - C T THÉP 1/5 PIC-TEC-GRR-WVO-J04-18580-B-3A
135 NHUE RIVER CROSSING DECK - PS1-PS2 - REINF - 2 / 5 VƯ T SÔNGNHU B N M T C U - PS1-PS2 - C T THÉP 2/5 PIC-TEC-GRR-WVO-J04-18581-B-3A
136 NHUE RIVER CROSSING DECK - PS1-PS2 - REINF - 3 / 5 VƯ T SÔNGNHU B N M T C U - PS1-PS2 - C T THÉP 3/5 PIC-TEC-GRR-WVO-J04-18582-B-3A
137 NHUE RIVER CROSSING DECK - PS1-PS2 - REINF - 4 / 5 VƯ T SÔNGNHU B N M T C U - PS1-PS2 - C T THÉP 4/5 PIC-TEC-GRR-WVO-J04-18583-B-3A
138 NHUE RIVER CROSSING DECK - PS1-PS2 - REINF - 5 / 5 VƯ T SÔNGNHU B N M T C U - PS1-PS2 - C T THÉP 5/5 PIC-TEC-GRR-WVO-J04-18584-B-3A
139
NHUE RIVER CROSSING DECK - PS1-PS2 - REINF - BAR LIST - 1 / 3 VƯ T SÔNGNHU B N M T C U -PS1-PS2 - C T THÉP - DANH
M C THANH - 1/3
PIC-TEC-GRR-WVO-J04-18585-B-2A
140
NHUE RIVER CROSSING DECK - PS1-PS2 - REINF - BAR LIST - 2 / 3 VƯ T SÔNGNHU B N M T C U -PS1-PS2 - C T THÉP - DANH
M C THANH - 2/3
PIC-TEC-GRR-WVO-J04-18586-B-2A
141
NHUE RIVER CROSSING DECK - PS1-PS2 - REINF - BAR LIST - 3 / 3 VƯ T SÔNGNHU B N M T C U -PS1-PS2 - C T THÉP - DANH
M C THANH - 3/3
PIC-TEC-GRR-WVO-J04-18587-B-2A
142 NHUE RIVER CROSSING DECK - ES1-ES2 - REINF - 1 / 5 VƯ T SÔNGNHU B N M T C U - ES1-ES2 - C T THÉP 1/5 PIC-TEC-GRR-WVO-J04-18590-B-3A
143 NHUE RIVER CROSSING DECK - ES1-ES2 - REINF - 2 / 5 VƯ T SÔNGNHU B N M T C U - ES1-ES2 - C T THÉP 2/5 PIC-TEC-GRR-WVO-J04-18591-B-3A
144 NHUE RIVER CROSSING DECK - ES1-ES2 - REINF - 3 / 5 VƯ T SÔNGNHU B N M T C U - ES1-ES2 - C T THÉP 3/5 PIC-TEC-GRR-WVO-J04-18592-B-3A
145 NHUE RIVER CROSSING DECK - ES1-ES2 - REINF - 4 / 5 VƯ T SÔNGNHU B N M T C U - ES1-ES2 - C T THÉP 4/5 PIC-TEC-GRR-WVO-J04-18593-B-3A
146 NHUE RIVER CROSSING DECK - ES1-ES2 - REINF - 5 / 5 VƯ T SÔNGNHU B N M T C U - ES1-ES2 - C T THÉP 5/5 PIC-TEC-GRR-WVO-J04-18594-B-3A
147
NHUE RIVER CROSSING DECK - ES1-ES2 - REINF - BAR LIST - 1 / 3 VƯ T SÔNGNHU B N M T C U -ES1-ES2 - C T THÉP - DANH
M C THANH - 1/3
PIC-TEC-GRR-WVO-J04-18595-B-2A
148
NHUE RIVER CROSSING DECK - ES1-ES2 - REINF - BAR LIST - 2 / 3 VƯ T SÔNGNHU B N M T C U -ES1-ES2 - C T THÉP - DANH
M C THANH - 2/3
PIC-TEC-GRR-WVO-J04-18596-B-2A
149
NHUE RIVER CROSSING DECK - ES1-ES2 - REINF - BAR LIST - 3 / 3 VƯ T SÔNGNHU B N M T C U -ES1-ES2 - C T THÉP - DANH
M C THANH - 3/3
PIC-TEC-GRR-WVO-J04-18597-B-2A
150 NHUE RIVER CROSSING DECK - BLISTER TYPE 7 - REINF VƯ T SÔNGNHU B N M T C U - BLISTER LO I 7 - C T THÉP PIC-TEC-GRR-WVO-J04-18650-B-3A
151
NHUE RIVER CROSSING DECK - BLISTER TYPE 7 - REINF - BAR LIST VƯ T SÔNGNHU B N M T C U - BLISTER LO I 7 - C T THÉP -
DANH M C THANH
PIC-TEC-GRR-WVO-J04-18651-B-2A
152 NHUE RIVER CROSSING DECK - BLISTER TYPE 6 - REINF VƯ T SÔNGNHU B N M T C U - BLISTER LO I 6 - C T THÉP PIC-TEC-GRR-WVO-J04-18652-B-3A
153
NHUE RIVER CROSSING DECK - BLISTER TYPE 6 - REINF - BAR LIST VƯ T SÔNGNHU B N M T C U - BLISTER LO I 6 - C T THÉP -
DANH M C THANH
PIC-TEC-GRR-WVO-J04-18653-B-2A
154 NHUE RIVER CROSSING DECK - BLISTER TYPE 5 - REINF VƯ T SÔNGNHU B N M T C U - BLISTER LO I 5 - C T THÉP PIC-TEC-GRR-WVO-J04-18654-B-3A
155
NHUE RIVER CROSSING DECK - BLISTER TYPE 5 - REINF - BAR LIST VƯ T SÔNGNHU B N M T C U - BLISTER LO I 5 - C T THÉP -
DANH M C THANH
PIC-TEC-GRR-WVO-J04-18655-B-2A
156 NHUE RIVER CROSSING DECK - BLISTER TYPE 4 - REINF VƯ T SÔNGNHU B N M T C U - BLISTER LO I 4 - C T THÉP PIC-TEC-GRR-WVO-J04-18656-B-3A
157
NHUE RIVER CROSSING DECK - BLISTER TYPE 4 - REINF - BAR LIST VƯ T SÔNGNHU B N M T C U - BLISTER LO I 4 - C T THÉP -
DANH M C THANH
PIC-TEC-GRR-WVO-J04-18657-B-2A
158 NHUE RIVER CROSSING DECK - BLISTER TYPE 3 - REINF VƯ T SÔNGNHU B N M T C U - BLISTER LO I 3 - C T THÉP PIC-TEC-GRR-WVO-J04-18658-B-3A
159
NHUE RIVER CROSSING DECK - BLISTER TYPE 3 - REINF - BAR LIST VƯ T SÔNGNHU B N M T C U - BLISTER LO I 3 - C T THÉP -
DANH M C THANH
PIC-TEC-GRR-WVO-J04-18659-B-2A
160 NHUE RIVER CROSSING DECK - BLISTER TYPE 2 - REINF VƯ T SÔNGNHU B N M T C U - BLISTER LO I 2 - C T THÉP PIC-TEC-GRR-WVO-J04-18660-B-3A
161
NHUE RIVER CROSSING DECK - BLISTER TYPE 2 - REINF - BAR LIST VƯ T SÔNGNHU B N M T C U - BLISTER LO I 2 - C T THÉP -
DANH M C THANH
PIC-TEC-GRR-WVO-J04-18661-B-2A
162 NHUE RIVER CROSSING DECK - BLISTER TYPE 1 - REINF VƯ T SÔNGNHU B N M T C U - BLISTER LO I 1 - C T THÉP PIC-TEC-GRR-WVO-J04-18662-B-3A
163
NHUE RIVER CROSSING DECK - BLISTER TYPE 1 - REINF - BAR LIST VƯ T SÔNGNHU B N M T C U - BLISTER LO I 1 - C T THÉP -
DANH M C THANH
PIC-TEC-GRR-WVO-J04-18663-B-2A
No / STT Drawing Title 1 Drawing Title 2 Tiêu 1 c a b n v Tiêu 2 c a b n v Reference No / S tham chi u No / STT Drawing Title 1 Drawing Title 2 Tiêu 1 c a b n v Tiêu 2 c a b n v Reference No / S tham chi u
164
NHUE RIVER CROSSING DECK - DEVIATOR TYPE1 - REINF VƯ T SÔNGNHU B N M T C U - B CHUY N HƯ NGLO I 1 -
C T THÉP
PIC-TEC-GRR-WVO-J04-18670-B-3A
165
NHUE RIVER CROSSING DECK - DEVIATOR TYPE1 - REINF - BAR LIST VƯ T SÔNGNHU B N M T C U - B CHUY N HƯ NGLO I 1 -
C T THÉP - DANH M C THANH
PIC-TEC-GRR-WVO-J04-18671-B-2A
166
NHUE RIVER CROSSING DECK - DEVIATOR TYPE2 - REINF VƯ T SÔNGNHU B N M T C U - B CHUY N HƯ NGLO I 2 -
C T THÉP
PIC-TEC-GRR-WVO-J04-18672-B-3A
167
NHUE RIVER CROSSING DECK - DEVIATOR TYPE2 - REINF - BAR LIST VƯ T SÔNGNHU B N M T C U - B CHUY N HƯ NGLO I 2 -
C T THÉP - DANH M C THANH
PIC-TEC-GRR-WVO-J04-18673-B-2A
168
NHUE RIVER CROSSING DECK - PARAPET-TYPICAL - SECTION &
ELEVATION
VƯ T SÔNGNHU B N M T C U - LAN CAN I N HÌNH - M T
C T VÀ M T NG
PIC-TEC-GAD-WVO-J04-18800-B-2A
169
NHUE RIVER CROSSING DECK - DRAINAGE PRINCIPLE -
MISCELLANEOUS - 1 / 4
VƯ T SÔNGNHU B N M T C U - NGUYÊN LÝTHOÁT NƯ C -
CÁC B PH N PH TR - 1/4
PIC-TEC-GAD-WVO-J04-18810-B-2A
170
NHUE RIVER CROSSING DECK - DRAINAGE PRINCIPLE -
MISCELLANEOUS - 2 / 4
VƯ T SÔNGNHU B N M T C U - NGUYÊN LÝTHOÁT NƯ C -
NH NGNGUYÊN T C KHÁC - 2/4
PIC-TEC-GAD-WVO-J04-18811-B-2A
171
NHUE RIVER CROSSING DECK - DRAINAGE PRINCIPLE -
MISCELLANEOUS - 3 / 4
VƯ T SÔNGNHU B N M T C U - NGUYÊN LÝTHOÁT NƯ C -
NH NGNGUYÊN T C KHÁC - 3/4
PIC-TEC-GAD-WVO-J04-18812-B-2A
172
NHUE RIVER CROSSING DECK - DRAINAGE PRINCIPLE -
MISCELLANEOUS - 4 / 4
VƯ T SÔNGNHU B N M T C U - NGUYÊN LÝTHOÁT NƯ C -
NH NGNGUYÊN T C KHÁC - 4/4
PIC-TEC-GAD-WVO-J04-18813-B-2A
173 NHUE RIVER CROSSING GENERAL - SCHEDULE VƯ T SÔNGNHU CHUNG- T NGH P PIC-TEC-GAD-WVO-J04-18900-B-3B
CHAINAGE
~
N
....Lyb1nh (0
.,; r;(0
~ ;-;;
- -DIFFERENCE =R.L. - G.L
:!iii ~CH£NH Ll;:CH= R.L-G.L ~ "<!;
- -- -ROAD LEVEL
~ ~.CAO E>O E>U'O'NG
....
RAIL LEVELS
~
CD
CAOE>ORAY ~CD
~
-VERTICAL GRADIENTS
L=160A7E>Qd6c:doc
Slp"'1.76'11>
E>O oOc =1.16%
HORIZONTAL CURVE DETAILS
Qlc chi HM lflltmg cong nAm
L=72.50m
R=3000.00m
~
1!I
Ill I
I
~
u 2A. 30/04/11 2nd -..txnlmlon oflBchnlcal dellgn
~ s 1D 01110/10 UPDATED
F = 1C 25/08/10 Updalod
,,11
1B 211/0B/10 UPDATED
!II§
Ii 1A. 31/01/10 Data Miming
REVISION o.t.TE llEllCRl'TlON
... n sil'A.00 NClAY NOi lllJolBsUAOOI
t----+---t----------------+----+-----t>------i CLIENT:
CHOeAuTLI:____________________________,,______,
HRB
A.. K . A.maud
1--=....p;;;;;;;;;.;.;;....i-.:;;:;=;:..._------------+-A..:;.;.K;:...__ _=:;;;;:......p;..;..;;A.maud=:.........i HANOI METROPOLITAN RAILTRANSPORT PROJECT BOARD
..... K .A.maud BAN DI/ ANeul)No ~TeO THIHhQI
IUllllllBr aiEOOBr aEFCl'DED
TIElll! saT allN1$TIElll!
•
65000
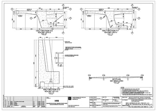
d1en bridge E
PLAN VIEW
MAT BANG
SCALE: 11250
TY LI;:: 11250
B
NHUE RIVER
SOng Nhut
LONGITUDINAL ELEVATION
MAT CAT DOC
" SCALE : 11250
TYL!;:: 11250
-~
LONGITUDINAL PROFILE
TRACDQC
SCALE: 11250
TYLS: 1/250
PROJECT IMPLEMENTATION CONSULTANT
1Uv>H THl,IC HleN Dl,r AN
SYSTRAS.A
FILENAME~N BAN1/£:
DESIGNED BYlTlllitr~ :
AK
CHECKED BYlBOAT :
G. Maurls
~
"!
~
;-;;
-;::
N
N
-N
8
oci
8
"'0
N
~
LVC=43.93
R=2500.00
FORllAT KHO BAN~ :
A1
STATJSH~H~G:
Technical Design
DAlENGAY:
31/01/10
Thil dl8Wil"G rn.ilt not be lither loll'lld. copildcroet.'will repnxlUOld
h whcll•or In pmrt cruMldfar•ny prupmewllhaul:tt.pftJrwrtllsl
permi.lond HRB.
N
...."":
-c;;
"'-
~N
-OI
N
CD
....:
"';-;;
0N
L 152.91
Slp:.0.00%
ElO DOC =0.00%
NOTE :
CHOY:
1. ALL DIMENSIONS ARE IN MILLIMETERS-LEVELS ARE IN METER
1.TAT cA cAc KICH THl/OCElllO'CE>O BANG MM -cAC CAOE>OEll/O'C TINH BANG M
PROJECTDU'AN: HANOI PILOTLIGHT METRO LINE Section Nhon-HanoiRailway Station
TIJY~N Ell/ONGs.6.TE>OTHI THI Ell~M1P HANOi 8ofn Nh&i·Ge HiN(li
mm~ BANI/£ : NHUE RIVER CROSSING
VllO'T SONG NHUI;
GAD-1 / 3
GAD- 113
PROJECT DIRECTORIGW..!lOcDI/AN : CHEFDESIG~ICHONHla,i !Hit! ~ : Un '6nlly llhengWqc phOp10 d,,,g duGI .... him Olllc, m0tpl'jn hoy
toiln bO, mA llhengWqclV d!ng9bing'*' bino.lo HRS.
DRAWING NO.IBAN1/£SO:
Alain ~ereau P. Amaud PIC-TEC-GAD-WVO-J04-18001-B 2A
~
1!I
Ill I
I
~
u~ sF ~
,,11
!II§
Ii
... n
E( r-,
I I
I l
I I
I I
I I
I I
I I
D
,--------
~===r===-l===i==============r=-=:::1-===i===~
I I I I I I
Ud UdSECTION A-A
MAT CATA-A
SCALE: 1/50
TYLE:: 1150
t----+---t----------------+----+-----t>-------i CLIENT:
CHOeAuTLI:_____________________________,,_______,
2A. 30/04/11 2nd -..txnlmlon oflBchnlcal dellgn
10 01110/10 UPDATED HRB
TOP OF PIER LEVEL
CAO 00 DINH TRl,J
.....
•1C 25/08/10 Updalod
1B 211/0B/10 UPDATED
A.. K . A.maud
1--=-..p;;=;.;;.._i-..;;;:;= ;;.._------------+-...._;;..;.K'----=;;;;;;.....p;..;..;;A.maud='---I HANOI METROPOLITAN RAILTRANSPORT PROJECT BOARD
TOP OF RAIL LEVEL
__J__ CAOE>QOINH RAY
t=---·---·---·---·~·---·---·---·---·1 TOP~~~EVEL
~=:-----------------, . ,-----------------=~OfllNH BAN ~Tc.Au
~ ~------1------~ ~ -~---
1 l------~-----J I-------------------1-------1-------L------------------- ~~~:~~R~~VEL
r--------------.-------1----.---~~-.:==~-====~-====::::.~-~~---
I
I
I
I
I
3Jio
I
2£iio
I ROAD LEVEL
n n CAOE>OfllJONG
-------------H'-4+----+-----+i-++--- ---·--- · ---- ~ - --
! r------------ ---------------,
I ~--r--~ ~--t--~ ~--1--~ Ic-1--- --1-----------0------.-----------T-- ---,- ~
-,--- --T-----------,------, -----------1-- ---1-
1 I I I I I
Ud Ud UdVIEW 1-1
GOC NHlN 1-1
SCALE: 1/50
TYLE:: 1/50
NOTE :
CHOY:
1. ALL DIMENSIONS ARE IN MILLIMETERS-LEVELS ARE IN METER
1.TAT cA cAc KICH THl/OCOl/O'CflO BANG MM -cAC CAOflO fllJQ'C TINHBANG M
PROJECT IMPLEMENTATION CONSULTANT
1Uv>H Tlil,IC HleNDl,r AN
FILENAMEI~N BAN~: STATJSH~H~G :
Technical Design
PROJECTDU' All: HANOI PILOTLIGHT METRO LINE Section Nhon-HanoiRailway Station
TIJY~N fll/ONG s.6.TeOTHITHIfll~M1P HA NOi 8ofn Nh&i-Ge HiN(li
SYSTRAS.A
DESIGNED BYTlllitr~ :
AK
CHECKED BYsoAT :
G. Maurls
FORllATIKHO BAN~ :
A1
DATEINGAY:
31/01/10
Thil dl8Wil"G rn.ilt not be lither loll'lld. copildcroet.'will repnxlUOld
h whcll•or In pmrt cruMldfar•ny prupmewllhaul:tt.pftJr wrtllsl
permi.lond HRB.
nTLEl~BAN~ : NHUE RIVER CROSSING
Vl!O'T SONG NHUI;:
GAD-2 / 3
GAD -2 /3
1A. 31/01/10 Data Miming ..... K .A.maud BAN DI/ ANeul)No ~TeO THIHhQI
IUlllllllll" aiEOOlll" aEFCl'DED
PROJECT DIRECTORIGW..!lOcDI/AN : CHEF DESIG~ CHONHla,i THl8 ~ : Un '6nlly llhengWqc phOp10 d,,,g duGI .... him Olllc, m0tpl'jn hoy
loiln bO. mA llhengWqc•• ding9l>il'G '*'bina.lo HRS.
DRAWINGNO.IBAN~SO:REVISION O...TE llEllCRl'TlON
sil'A.00 NClAY NQl lllN)sUAOOI TIElll! SQl:r allN1$TIElll! Alain ~ereau P. Amaud PIC-TEC-GAD-WVO-J04-18002-B 2A
~
1!I
Ill
I...
E(' 'I I
,-,I I
I
~
u~ sF ~
,,11
!II§
Ii
n
I I
I
I
I
I
I
51
I I
TOP OF RAIL LEVEL
CAOflQfllNH RAY
·---~---
TOP OF DECK LEVEL
CAOfl0fllNH BAN ~T cAu
-~----
TOP OF PIER LEVEL
CAOfl0 fllNH TRl,J
--·---·---·---·---·_I___·--
----,
I
I
I
I I
I I
~-.£:1=-71::-------£-~l~:t.-~- 1--1-1 - - - - - ,-1--1 -
I · I I · I
W LP
SECTION C-C
M~TCATC-C
SCALE: 1/50
TY Le: 1/50
DI I I I I I I
ROAD LEVEL
CAO fl0 fliJONG___I.___. _ _
t-----+---t----------------+----+------t>-------i CLIENT:
CHOeAuTLI:_____________________________,,________,
2A. 30/04/11 2nd -..txnlmlon oflBchnlcal dellgn
1D 01110/10 UPDATED HRB
U-GIRDER IDAMU
BOX-GIRDER
DAMH
TOP OF RAIL LEVEL
CAOflQfllNH RAY
t_ __ -- - ~---
TOP OF PIER LEVEL
CAOfl0fllNH TRl,J
---·--- ·----~·---
ROAD LEVEL
CAOflOfliJONG
----++-tt----+---tf-'t-+------·---·~·--
r--- ----,
I I
I I
I I
I I
I I
~-.£=1=-71::-------£-~i~:t.-~-
1
--1-1
- - - - -
1
-1--1
-
I · I I . I
W LP
VIEW2-2
G6C NHlN 2-2
SCALE: 1/50
TY Le: 1150
•PROJECT IMPLEMENTATION CONSULTANT
1Uv>H Tlil,IC HleN Dl,r AN
SYSTRAS.A
FILENAMEI~N BAN~ :
DESIGNED BYTlllitr~ :
AK
1C 25/08/10 Updalod
1B 211/0B/10 UPDATED
A.. K . A.maud
1--'-"---+"=;.;;.._i-==;;.....------------+-...._;;..;.K'----=;;;;;;...-+'..;..;;A.maud='--I HANOI METROPOLITAN RAILTRANSPORT PROJECT BOARD
CHECKED BYsoAT :
G. Maurls
1A. 31/01/10 F1.m1....
REVISION o.t.TE llEllCRl'TlON
sil'AOO NClAY NOilllJolBsUAOOI
A.. K .A.maud BAN DI/ ANEuONO ~Tfl0 THIHhQI
IUllllllBr aiEOOBr aEFCl'DED
TIElll! SQl:r allN1$TIElll!
PROJECT DIRECTORIGW..!lOcOiiAN :
Alain ~ereau
CHEF DESIG~I CHONHla,i !Hit! ~ :
P. Arnaud
TOP OF RAIL LEVEL
CAOfl0 EINH RAY
______I__.__
TOP OF DECK LEVEL
CAOEOE>INH BAN M,l,.T cAU
y
SOFFIT LEVEL
CAOE>OVOM
--------------..1--·---·---·---·_I__·--
NOTE :
CHOY:
FORllATIKHO BAN~ :
A1
STATJSH~H~G:
Technical Design
DAlEINGAY:
31/01/10
Thil dl8Wil"G rn.ilt not be lither loll'lld. copildcroet.'will repnxlUOld
h whcll•or In pmrt cruMldfar•ny prupmewllhaul:tt.pftJr wrtllsl
permi.lond HRB.
Un '6nlly llhengWqc phOp10 d,,,g duGI .... him Olllc, m0tpl"jn hoy
toiln bO, mA llhengWqclV d!ngtbil'G'*' bino.lo HRS.
1. ALL DIMENSIONS ARE IN MILLIMETERS-LEVELS ARE IN METER
1.TAT cA cAc KICH THl/OC E>llO'CflO BANG MM -cAC CAOflO fll/O'C TINHBANG M
PROJECTDU' All: HANOI PILOTLIGHT METRO LINE Section Nhon-HanoiRailway Station
TIJY~N Ell/ONGs.6.TEOTHITHI Ell~M1P HA NOi 8ofn Nh&i-Ge HiN(li
nmlIDIBAN~ : NHUE RIVER CROSSING
Vl!O'T SONG NHUI;:
DRAWING NO.IBAN~SO:
GAD-3/3
GAD-3/3
PIC-TEC-GAD-WVO-J04-18003-B 2A
~
1!I
Ill I
I
~
u~ sF ~
,,11
!II§
Ii
... n
~ OF PIER/EXP. JOINT
i1ATRl,J/M01 NOi EXP 38500
@
fn 4950 2000 3000 3000 3000 3000 3000 3000 3000 3000 3000 4500 4500
rOFBEARING -DEi IATORTYPE 1 [ EVIATORTY:>E2-
C AGOI~ B ISTERTYPE
7-~
-STITC~ JOINT
UCHIJYt:N Hll0NG OA11 U CHUYt:N HllO •G L.Cll.~2 RHOA17
/ M01N01
"/ · • · - ..•. .•. ,. .
::~:/~~'.~ ;~.(~:-~~;-. -•·
... ... .
~
...:
_jl11111111 ~I~~111Ill/}J'i,
SA5' SA4' SA3' -SA2' -[ SA9' SAS' SA1' PS1
~ ~
SA7' SA6'
~ .~ __... ~
'".. .. .. ... . ·'.
. .. - l~ .... ~ ~ ~ ..•. ~ ~ ...• .' .· ···-·" · :-~::.~·:..:_~. .. ~v... -:.......... ··.: •..
I ......ACCESS OPE ING LeLISTER TYPE 1 "::':;•.•>~>~ 1,;ir;. ~"'.·"l~/.:~:.,j·~.~·.:...~; ::~~·!,:t:•
·: . •
~))1~J'li~TYPE 3 BblSTER TYPE 4---{LISTER TYPE~ ...•• ·l~L~~~~-~~~
....·:-~ ·. · ~
L ITIEPCAN M
CAST ON ·8~0UNO IBl
ROLOAI 1 '5 CAST ON ~ROUND
£l0C lR~N !MT BANG . R LOAI 4 RO LOAI 5 RO LOAI 6
£l0C lR~N !MT BANG
R(
DISTANCE FROM ~OF
KHoANG cACH TV LCOA
EXPANSION JOINT
KHE Bl~N DI.ING
ALONG COF ALIGNMENT
cAC CAO ElO KHAC DOCTJY£N
OVERALL DEPTH (D)
El0 sAU TONG TH~
SOFFIT THICKNESS (Ts)
CHl~U DAY C0A VOM
WEB THICKNESS (Tw)
CHl!l:U DAYC0A BUNG
.,, ~
GIANDAo
2000 3000
SA9'
3000
CAST USING FORM TRAVELLER BY CANTILEVER CONSTRUCTION TECHNIQUE
ElUC SO' DUNG cAN mucDI ElONG BANG CONG NGHI; nil CONG aoc HANG
3000
------
------
------
------
SAS'
·---
3000
3000
3000
3000
SA7'
3000
3000
SECTION A-A
M~L&~i1~-A
TY LI;: 11100
38500
3000 3000 3000
------ ------
------ ------
------ ------
------ ------
SA6' SA5' SA4'
·---·
3000 3000 3000
PLAN VIEW
MAT BANG
~CALE : 11100
ti' LI;: 1/100
38500
3000 3000 3000
• ·:-.. •. •• ' ., . . ••• • !"·.·"'' ~ "!'.' ~ ....:t ::- ... .. '.. ·~~. ; ·:. .
SA7'
3000
SA6' SA5'
3000
SECTION B-B
MATCATB-B
"SCALE : 1/100
TY LI;: 1/100
3000
------
3000
3000
3000
------
3000
3000
o----+----+----------------+-----------i CLIENT:
CHOeAuTLI:
_______________________________,
•PROJECT IMPLEMENTATION CONSULTANT
1Uv>H Tlil,IC HleN 01,r AN
SYSTRAS.A
2A 30/D4/11 2nd &1bmll&lon Dftachnlcal dMlgn HRB
1C 25/D8110 Updalod
1B 2111DB/10 UPDATED
1A. 31/01/10 F1.m1....
A.. K . A.maud
1--=--+-=~-+-"==--------------+-A..;;..;K.;.___==--".A.maud.;;;.;;;=..--1 HANOI METROPOLITAN RAILTRANSPORT PROJECT BOARD
A.. K .A.maud BAN DI/ ANelrl)No ~HIO THIHhQI
3000
SUPPORTED STAGING
4500
GIANDAO
OF DIAPHRAGMS/PIER
OATl/ONG VAYfTRU
4500 3
~---+-------~~1--------­
--------- ---------=-4
. ~:~i::J·---· ~
------=== ==~-----­
..--------.!-=--=--=--=--=--=--=--=--=-t -=--=--=--=--=--=--=--=--=- r-
3000 4500
3000 4500
3000 4500
FILENAME~N BAN~:
DESIGNED BYTlllitr~ :
AK
CHECKED BYsoAT :
G. Maurls
4500
4500
FORllATI KHO BAN~ :
A1
3
3
3
STATJSH~H~G:
Technical Design
DAlEINGAY:
31/01/10
Thil dl8Wil"G rn.ilt not be lither loll'lld. copildcroet.'will repnxlUOld
h whcll•or In pmrt cruMldfar•ny prupmewllhaul:tt.pftJr wrtllsl
permi.lond HRB.
NOTE :
CHOY:
1. ALL DIMENSIONS ARE IN MILLIMETERS-LEVELS ARE IN METER
1.TAT cA cAc KICH THllOCElllO'CElO BANG MM -cAC CAOElOEll.IQ'C TINH BANG M
PROJECTDU'AN: HANOI PILOTLIGHT METRO LINE Section Nhon·HanoiRailway Station
TIJY~N ElllONGs.6.TEl0 THI THI Ell~M1P HANOi 8ofn Nh&i· Ge HiN(li
nmlIDIBAN~ : NHUE RIVER CROSSING
Vl!O'T SONG NHUI;:
GAD-SEGMENTARRANGEMENT-1 / 3
GAD - BO TRI D0,6.N - 113
REVISION O...TE llEllCRl'TlON IUlllllllll" aiEOOlll" QEHl'DED
sil'AOO NClAY NOlllllolBsUAOOI TIElll! SQl:r allN1$TIElll!
PROJECT DIRECTORIGW..!lOcOiiAN : CHEFDESIG~ICHONHla,i !Hit! ~ :
Alain ~ereau P. Amaud
Un '6nlly llhengWqc phOp10 d,,,g duGI .... him Olllc, m0tpl"jn hoy
toiln bO, mA llhengWqclV d!ngtbil'G'*' bAnoJo HRS.
DRAWING NO.IBAN~SO:
PIC-TEC-GAD-WVO-J04-18007-B 2A
4500
4500
4500 3000
~ OF DIAPHRAGMS/PIER
CfJA TLIO'NG VAYfTPJ.)
4500 3000
3000
3000
3000
3000
3000 3000 3000
-DEV~TOR TYPE~
1,JCHl~N Hl!ONG la,.12
3000 3000 3000
3000 3000 3000 2dio
I
65000
3000 3000 3000 21m
I I I
3000 3000 3000 3000 3000 3000
D~ATORTY E21
l,J ~HUY~N HL10 G L~l 2
3000 3000 3000 3000 3000 3000
I I
3000 3000 3000
3000 3000 3000
I I I
4500 4500
~OF DIAPHRAGMSJPIER
CllATOOl~G VAYfTRl,J
4500 4500
------~------------ ----------- ~ ----------- ------ ------------ ------r------------ ------r---------r--------
~PS1
4500
4500
4500 I 3000 I 3000 I 3000 I 3000 I 3000 I 3000 I 3000 I 3000 I 3000 I 2rno I 3000 I 3000 I 3000 I 3000 I 3000 I 3000 I 3000 I 3000 I 3000 I
~ OF DIAPHRAGMS/PIER
I :OATOONG VAYfTRl,J
4500 3000 3000 3000 3000 3000 3000 3000 3000
PLAN VIE"V
MAT BANG
SCALE : 1/100
TYL!;: 1/100
65000
3000 21m 3000 3000 3000 3000 3000 3000 3000 3000 3000
PS2
4500 4500
If: OF D~HRAGMS/PIER
cfJA 11/0j.iG VAYITRU
4500 4500
__P_S_1_·......'~~~lf'' -~~:~_SA2__11
_••_..._.~_
1
__ ~-ll_SA4---ll"~'-·-'...-· -··_·_. -+ll.._· _._.._·-SA6=·=·'._·_;._.~_11_SA_7_.__,.~...·._..._~_A8_..·._·.--1-·-·-~-·-··_' ~~ -·-_:e_-9_. _r-·-·~-~-~---·...,ll·-'f'>---··_..._S_B_7___.il"'f-='"~·s_·_B~,6-·_·_...ll_.,__·_S_B_:_---....m..__.._.. .4-~B:1 ~-··-~-~-"_· :, · .02·~ ··:.: ·····~· ~-· «i~~v~L~·-·_·
' •u ;2t~xt::,,=......=,.=...=. +=..::;:....::;_:;::__:;::~t11~,=.::~..="~"*-Y:;'·:;;.._.::_., :!!. '.t.1,_.-_Jld;I:;:::.,~m~.__;::__.:;::::_::::..=..:!L_11..i i ! i_ ·.=.::::::. dlll~_.~,;..-~[Jlm;:_..~-;:-;,J:;:__;::::_;:::,_;::::.,;::::.. d:;~~:.,6~~/b.._:;:.=...=...=...=..:1;;;.;~_~ri;..,;.;__;,;....~.Jll!!:_:::_,::;:::, =:-~..Jilb.=, ;:::_.::_.J.~.!1.d ,;:;:;bl:._._:J.11!::;.._::__ ;;...::::..~.. II~,.:;:;,,_·:;::"·-~:-~11':::;_.:::,__::,:;:__;:d:::;_:,;:>:.::;"":;,._J, ~~11~:(_......-..,-.-_-4500
DISTANCE FROM ~OF
KHoANG cAcH TC1 L C0A
EXPANSION JOINT ~ iKHEBl~ND~G
ALONG tOF ALIGNMENT
cAc CAO £10 KHAc DOC TUYEN
OVERALL DEPTI-1 (D)
£10 sAu TONG THE
SOFFIT THICKNESS (Ts)
CHIEU DAY COA VOM
WEB THICKNESS (Tw)
CHIEU DAY COA81,JNG
4500
SECTION B-B
MAT CAT B-B
"SCALE: 1/100
Ti'Ll;O: 1/100
4500 4500
CHOY:
1. ALL DIMENSIONS ARE IN MILLIMETERS-LEVELS ARE IN METER
~ 1.TAT cAcAc KICH THU'OC £lU'QC00 BANG MM ..cAcCAO £lQ £lU'QCl1NH BANG M
~ I ____________________________,,___ ___, CLIENT: II PROJECT IMPLEMENTATION CONSULTANT ALENMIEITtN BANvE: SCALElrr~: STATUS lT1NHT~: PRO.ECTI DI/ AN : HANOI PILOT UGKT METROLINE Sadlon Nhon. Hrml RalwaySlllllan
i ~ 1----+---1-------------------+----11------1 CHO flAU nr: • TV VJN THVCHleN DIJ AN PIC.TEC<JAD.WV<>J<M.11111M0_2A.DW<J Technical Deeign ru~NEll/ONG sAT00 THITHIDlt:MTP HANOi Eollll Nhfin. Ge H~NOi
., SYSTRAS.A
- n HRB aes1GNED BY1rn1£r~ : FORJMn~BANv£ : DATEI NGAY: 1ru1n::NBANv£: NHUE RIVER cRoss1NG
~ ~-£! 2A 3MJ.11'11 2nd•ubml11lonoflllchnlcald-.,, A.K G. Maultll P. Amaud A.K A1 31/01110 WQ'TSONGNHUI;:
!
~ !I l--1'-"c--l""2Ml""'lltl~O-i-U""Joda=·111c1"--------------+-A."'-K'-----FG"'-.. Ma""u""ite"-if-"P.""'Amaud=---1 HANOI METROPOLITAN RAIL TRANSPORT PROJECT BOARD Cl£Cl<EDBYsoAT : n.~•-'11"""""""_""_,·_,.,._ __, GAD- SEGMENT ARRANGEMENT-2 / 3
! ~ 1e ZW&"IO UPDATED A.K a. Maurie P.Amaud G.Mauris ~w11o11or in por1 ....-ror.,,,.p._w111oo.1111opt1or- "A" · BOTRlao~ - 2/3
~ ~ 1A 3UJ1110 Fi'"1 leaJo A.K G. Maurie P.Amaud BAN Dl,l'ANflUONGsATDOlHIHAN(ll 1--------,-----..,....-1 pormiHionofHRB. """"
~ ',!! PROJECTDIRECTOR1GIANroe DJAN : CHIEFDESIGNER1CHO lfileM TH1£r ~ : ..,"'..."""'•._""'Pd•..,••,.,,""'"'"'"""'~....,.., DRA'MNGNO.1BANvE so : I~ ~ i ~~ ~ N0?~::~~:01 ~r :ml!!' =~~.: AlainB'9chereau P.Amaud """ 00·m•""'"•"-••o!not..,.,.,..,,..HRB. PIC-TEC-GAD-WVO-J04-18008-B 2A~..___._____.___.________________.....___....___...____._________________.._________________.___________....._________________.______________________..___,
~
;
'l!;
5!
nt ~ ~
I
i ~
! ti
~ ~
~ ',!!
~ n0..
DISTANCE FROM Ii!. OF
KH~G cAcH TO' L CCIA
EXPANSION JOINT
KHEBli;N~G
ALONG t OF ALIGNMENT
cAc CAO E0 KHAC DOC TU'r'i=N
OVERALL DEPTH (D)
EIO sAu TONG THi;
SOFFIT THICKNESS (Ts)
CHIEoU DAY CCJAVOM
WEB THICKNESS (Tw)
CH1£U DAY CCJA BUNG
4500 4500
-PS2
CAST ON GROUND
EOC TRi;N ~T BANG
SUPPORTED STAGING
GIANDAo
3000
SB1'
38500
BLISTER TYPE 5 LISTER TYPE 4
R0L~5 R0L0~4
BLISTER TYPE 1
ROLO~l 1
CAST USING FORM TRAVEL!.ER BY CANTILEVER CONSTRUCTION TECHNIQUE
EOC SO' DUNG cAN TRUCDI EONG BANG CONG NGHE THI CONGEOC HANG
SECTION A-A
MAT CATA-A
SCALE : 1/100
ITLE: 11100
SUPPORTED STAGING
GIANoAo
OF PIER/EXP. JOINT
C TRl,J.IMOI NOi EXP
~ OF D HRAGMS/PIER OF PIER/EXP. JOINT
----:c==C_OA_T_IJ_O--G~V_A_~_ITR--=U=-=--___----=--=-=:-----::--::-::-::------::-:==--------:==--=-----=-=-=-'38~5~00~-=-=-=-=-------=-::-::-:----=-=c::------::-:==----::-::c::-::-----::--:-::-::-------:c=::-~OATRl,JJMOINOIEXP
4500 4500 3000 3000 3000 3000 3000 3000 3000 3000 3000 2000 3400
PS2
--------t---------·---- ---- ---------
4500 4500 3000 3000
SB3' SB4' SB5'
3000 3000 3000
PLAN VIEW
MAT BANG
SCALE : 1/100
IT u; : 11100
ES2
$86' SB7' sea·
3000 3000 3000 3000 2000 5000
~OF D PHRAGMS/PIER OF PIER/EXP. JOINT
___c_OA_TV_O__G~V_A_v_n_RU~-----------------------~38~5~00~---------------------------0A TRUIMOI NOIEXP
4500 4500 3000 3000 3000 3000 3000 3000 3000 3000 3000 2000 3400 250
PS2
4500
SB5'
3000
SECTION 8-8
MAT CAT B-B
"SCALE: 1/100
TYLS: 11100
SB6'
3000
,,
SBT
3000 3000 3000 3400 250
NOTE :
CHOY:
1. ALL DIMENSIONS ARE IN Mlll.IMETERS·LEVELS ARE IN METER
1.TATcAcAc KICH THJ'C'.1cEIJ'QC00 BANGMM -CAcCAOEQ EIJ'QCT1NHBANGM
o----+----+----------------+-----------4 CLIENT:
1----+---+----------------+----+---+-----1 CHOEIAUTV:
II
PROJECT IMPLEMENTATION CONSULTANT
TV VJN THVC Hl~N DIJ AN
SYSTRAS.A
ALENMIEITtNBAN~: STATUST1NH T~ :
Technical Oeeign
PRO.ECTI DI/ A.II : HANOI PILOTUGKT METROLINE Sadlon Nhon- Hrml RalwaySlllllan
ru~N WONG sATflO THI THID1£MTP HANOi Eo911 Nh&i-Ge H~ NOi
2A 3MJ.1111 2nd .subml111lon ofl&dinlcaldea9'1 A. K HRB
1C 2Mllltl0 u 1lld
18 ZW&'"IO UPDATED
A. K
1--=--F"-==-+"==--------------+-A.'"-'K"'"---+'"'-==-+~=--t HANOI METROPOLITAN RAIL TRANSPORT PROJECT BOARD
1A 3U J1110 Fim-.
REVISION DATE
SC/ADO! NGA.Y
DESCRIPTION
NQI DUNGSO'A DOI
A. K BAN DI/ANDUONG BAT DO THIHAN(ll
DelllNEDl!Y
1111trK£
IH!llEDl!Y
1111.r
DESIGNED BYTll1£r~ : FORIMTI~BAN v£ :
A. K A1
PROJECT DIRECTORIGIANElOcD./AN :
Alain B'9chereau
DATEINGAY:
31/01/10
TITlfl~NeANv£ : NHUE RIVER CROSSING
WQ'T SONG NHUI;:
GAD-SEGMENTARRANGEMENT-3/3
GAD -BO TRI ao~ -313
ORAWINGNO.BAN~ SO :
PIC-TEC-GAD-WVO-J04-18009-B 2A
~
~ 'l!;
t n
I
I ~
~ ~
.. ti
~ ~
~ ',!!
~ n0..
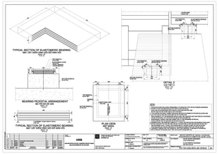
TYPICAL SECTION OF ELASTOMERIC BEARING
M~T CAT Dl~N HlNH GOI DO' DAN HOI
4
4
"
a
"'
4 <l
4 <1
44
~ -il 4
q
.4
4
SCALE: 1/2
Ti' LI;: 112
4 <1
a
F
.d
'14
<lo 4
"
4 4
a"
<l
4
<1
4
',
TOP PEDESTAL
ElAK£TREN
ELASTOMERIC LAYER
LOP CAO SU
STEEL LAMINATE
LOP COT BAN TiiEP
100
4
<l
4
.,
4
<1
4 4.,
<l
" <l
.., I
Q 4 4 4 Lj .
B~~RING
4
PEDESTAL ~RRA~~~ME~T"~BO TR[ DA K~ GOI
SCALE: 1/5
Ti'Ll;::1/5
400
THICKNESS= 6+3x4+12x3+6 = 60mm
CHIEUDAY
TYPICAL SECTION OF ELASTOMERIC BEARING
M~T CATDl~N HlNH GOI DO DAN HOI
SCALE: 112
Ti' LI;:: 1/2
t----+----+--------------+----t--------t CLIENT:
1 - - - + - - - - + - - - - - - - - - - - - - - + - - - 1 - - - - + - - - - - t CHOf>AUTll:
2A 3MJ.1111 2nd .subml111lon ofl&dinlcaldea9'1 A. K
TOP PEDESTAL
eAKETR£N
BEARING
GOI
BOTIOM PEDESTAL
eAK£ol1<'.11
HRB
1C 01/1Ql10 UPDATED
18 2Ml&"IO Upda111d
A. K
1--"'"--t=-'='-+-=-"="'------------+A."'K"'----F~=-+""="'--i HANOI METROPOLITAN RAIL TRANSPORT PROJECT BOARD
1A 23ftlfll10
REVISION DATE
SO'ADOI NGA.Y
Flrotlmuo
DESCRIPTION
NQI DUNGSil'AflOI
A. K BAN DI/ ANflllONG sATDO Tlll~ NQI
DEDEDl!'f
11Elt
400
LONGITUDINAL~.
TRl,JC DOC ~IIt!J-
•
~~a: z
!!;!u
Cl)~
~~
I-
PLAN VIEW
M~T BA.NG
SCALE: 1/5
Ti' Li;:1/5
PROJECT IMPLEMENTATION CONSULTANT
lVVAN THIJCHISNDIJ AN
SYSTRAS.A
PROJECT DIRECTORIGIAMllOcDlfAN:
Alain B6chereau
r----·---·---·---·---------r-+-T- - - - =·~---·---1
! I TOP PEDESTAL ELASTOMERIC BEARING 1
1
I DAKE T~~~ ~cAuCAO SU I
I I lilj_.., .•• ( " ~' •·1 jl I
I
I OJTOM PEDESTALf •: • t .·. .·
I~ DlfOI "~: • ":, r; ~.'«.•~. ~
I
I~
300
J500
I
I I I
I I
I I
I
I I
I
I
I
II
! I
I I
I I
'----------------------- - ---- - -----, I
I
I I
I
_jI
L_JPP PEDESTAL ELASTOMERIC BEARING
j uA-K~.. •'VI  / GOl-cAtJ"C::-st:J 1
_ _ __.__ ___,le- ~ ~  I ·..-- ';:.I I
I /f------'°-t+-ll.'. ....'. .-· ....... ,__.-i~_·- --+--jl
I
'··· ' . . . d-2
,___ _ _ ____, '"!- 4 =...... -4 ~~ '.l----....-+------+---l
I V. '.. _
~-=TAL I. ___::___._.l__.___I___.___.___.___,___ ---
FILENMIEITtN BANvE:
DESIGNED BY Tllli;rK£ :
A. K
SCALElTY L~ :
DETAIL 2
CHI Tl~T2
SCALE: 1/10
Ti' LI;:: 1/10
NOTES : ----------------------------~
GHI CHU:
1. SPECIFICATIONS INCLUDING PERMISSIBLE TOLERANCES FOR THE ELATOMERIC BEARINGS
1. CHI DAN K'i' TH~T BAO GOM DUNG SAi CHO PHE'.P CHO cAc G01CAO SU
SHALL BE IN ACCORDANCE WITH AASHTO LRFD 2ND EDITION 1998
SE PHA'.I ruAN THO TIEU CH~ AASHTO LRFD PHIEN Bl(N 2
2. THE CONTRATOR SHALL SUBMIT DETAILED METHOD STATEMENTS FOR INSTALLATION AND
2. NHA THAu PHAI Ell; TRINH cAcTHUYET MINH CHI TIET PHllONG PHAP
REPLACEABILITY OF THE BEARINGS WHICH SHALL BE CHECKED AND CERTIFIED BY APPROVED
LAP ~TVA KHA NANG THAY THE cAc GOI cAu MA SE PHAI EllfQ'C KIEM TRA
INDEPENDENT AGENCY BEFORE SUBMITIING TO THE ENGINEER APPROVAL
VA xAc NH~ BOI MOT caQUAN El()C ~p ElA Ell/Q'C PHE DUYl;T
3. BEARING SHALL BE HANDLED CAREFULLY. rT SHALL BE PROTECTED FROM BRIGHT SUN LIGHT
3. GOI cAu PHAI Ell/Q'C THAO TAc cAN ~N. GOI cAu PHAI EllfQ'C BAf) vs KHOI ANH sANG GAT cOA PMT TROI
AND EXTREME COLD. IT SHALL BE STORED NEATLY UNDER COVER TILL INSTALLATION
VA KHI HAU auA ~NH. G01 cAu PHAI ElllQ'C LllU GIO' 51'.CH SE TRONG VO BOC CHO ElEN KHI LAP ~T
4. CONCRETE GRADE FOR TOP PEDESTAL I BOTIOM PEDESTAL: fc=60 Mpa (CYLINDRICAL)
4. Qlip BE TONG ElOI Vdl BAN W.T ElA KE TREN I ElA KE Dl!Ol l'c=EIO Mpa (MAU TRU)
STAnJST]NHm.,NG:
Technical Deeign
PROJECTIDV' AN : HANOI PILOTLIGHT METROLINE Sec11on Nhon· Hanoi Rallway S1allon
TIJY~N ElUONG sAT ElO THI THI EllBol lP HANQI E>ofn Prin· Ga HtNOi
FORIMTI KHOBAN'/£: DATEINGAY:
23/06/10
TTl1.El'TtNBANvE: NHUE RIVER CROSSING
VU'Q'T SONG NHUI;:A1
CHECl<ED BYsoAT: n.~ •-.-.i """"" "" _""_,,_,.,._ __. ELASTOMERIC BEARING
GOI c:AU CAO SU
G. Mauris in wholeoti'IP1rt or ul9dfor1nyprup(*witto.rtlhlpriotwrltln
1-----....,..--,......,---1 permillionof HRB.
CHIEFDESIGNERCH) NHl('M THI~K£ : Mn .. n0y "'°""°"""- w...,.-.i....,"""""""""'m0t...,,..,P.Arnaud .... ~ ma -o..,..,ID"llt'*" *.., ""' """·
DRAWINGNO,BAN vESO:
PIC-TEC-GAD-WVO-J04-18152-B 2A
~
'I'
';i; l!;
fij
nt ~ ~
I
i ~
! ti
~ ~
~ ',!!
~ n0..
PLAIN CEMENT CONCRETE MORTAR
WAPCC
4141
4141
2933
ELEVATION VIEW
MAT DUNG
SCALE: 1f.25
ij 1•:1/25
PLAN VIEW A-A
MAT ~~t!~12~-A
ij I. :1/25
CLIENT: IIt---+---+---------------+-----1-----11-------1 CHOEIAUnr: ,
2A 3CW4/11 2nd aubmi11ion oflechnicaldllil9iun
1D 01/1Ql10 Updatlld
t---+----+---------------+-----1-----11-------1
HRB
1C 2Mllltl0 u 1lld
18 ZW&"IO UPDATED
A. K . Arnaud
t-;;.;;..--t=~;..:_+--""'====--------------4"A.::..:K::..__--f=::..::::::::...+.~Amaud=~ HANOI METROPOLITAN RAIL TRANSPORT PROJECT BOARD
PROJECT IMPLEMENTATION CONSULTANT
TU VJN THVC HleN DIJ AN
SYSTRAS.A
1A 3U J1110 Fim-.
PROJECT DIRECTORIGIANElOcD./AN :
A. K .Arnaud BAN DI/ANDUONG BAT DO lHIHAN(ll
DelllNEDl!Y IHlllEIJl!Y CllJEFOFDBDREVISION DATE DESCRIPTION
SC/ADO! NGA.Y NQI DUNGSO'A DOI Alain B'9chereau1111tr1E 1111.r C1!lNllillnETIE
DRAINAGE SPOU
MANG TiiU NlJO'c
PLAIN CEMENT CONCRETE MORTAR
VfJAPCC
ALENMIEITtN BAN'IE:
DESIGNED BYTll1£r~ :
AK
FORIMTI~BAN v£ :
A1
STATUSlT1NH T~ :
Technical Deeign
DATEINGAY:
31/01110
Cl£Cl<EDBYsoAT : n.~•-'11 """"" '" _""_,,_,.,._ __,G. Mauris ~ whol1 or in port<r .-for anyp,_ w111oo.1 111o pr1or-
l-------:--...,......,....-1 perm~~dHRB.
CHIEFDESIGNERI CHONHleM TH1£r ~ : ..."'. ..""'"• ._ ph6pd . .... . ,.,, '""hlm ' "'"· ~........
P. Arnaud """bO,m•""'"•"-••<Diot...,..,..,,..HRB.
SCALE: 1f.25
ij I' :1125
PRO.ECTI DI/ AN : HANOI PILOTUGKT METROLINE Sadlon Nhon- Hrml RalwaySlllllan
nJ~N WONG sAT00 THI THIDlt:MTP HANOi Eo911 Nh&i-Ge H~ NOi
TITlflrtNBANv£: NHUE RIVER CROSSING
WQ'T SONG NHUI;:
DRA'MNGNO.BAN'IE SO :
PIER CAPS - P151 - DRAINAGE
MO TRl,J - P151 - THOAT NU'O'c
PIC-TEC-GAD-WVO-J04-18251-B 2A
~
~
'l!;
fij
nt ~ ~
I
i ~
! ti
~~
~ ',!!
~ n0..
PLAIN CEMENT CONCRETE MORTAR
WAPCC
4141
ELEVATION VIEW
MAT DUNG
SCALE: 1f.25
ij 1•:1/25
PLAN VIEW A-A
MAT ~~t!~12~-A
ij I. :1/25
CLIENT: IIt---+---+---------------+-----1-----11------1 CHOEIAUnr: ,
2A 3CW4/11 2nd aubmi11ion oflechnicaldllil9iun
1D 01/1Ql10 Updatlld
t---+----+---------------+-----1-----11--------1
HRB
1C 2Mllltl0 u 1lld
18 ZW&"IO UPDATED
A.K . Arnaud
t-;;.;;..--t=~;..:_+--""'====--------------4"A.::..:K::..__-f=::..::::::::...+_~Amaud=~ HANOI METROPOLITAN RAIL TRANSPORT PROJECT BOARD
PROJECT IMPLEMENTATION CONSULTANT
TU VJN THVC HleN DIJ AN
SYSTRAS.A
1A 3UJ1110 Fim-.
PROJECT DIRECTORIGIANElOcD./AN :
A. K .Arnaud BAN DI/ANDUONG sATDO lHIHAN(ll
DelllNEDl!Y IHlllEIJl!Y CllJEFOFDBDREVISION DATE DESCRIPTION
SC/ADO! NGA.Y NQI DUNG SO'A DOI Alain B'9chereau1111tr1E 1111.r C1!lNllillnETIE
DRAINAGE SPOU
MANG TiiU NlJO'c
PLAIN CEMENT CONCRETE MORTAR
VfJAPCC
ALENMIEITtN BAN'IE:
DESIGNED BYTll1£r~ :
AK
FORIMTI~BAN v£ :
A1
STATUSlT1NH T~:
Technical Deeign
DATEINGAY:
31/01110
Cl£Cl<EDBYsoAT : n.~•-'11"""""'"_""_,,_,.,._ __,G. Mauris ~ whol1or in port<r.-foranyp,_w111oo.1111opr1or-
l-------:--...,......,....-1 perm~~dHRB.
CHIEFDESIGNERI CHONHleM TH1£r ~ : ..."'. ..""'"• ._ ph6pd . .... . ,.,, ""'hlm ' "'"· ~........
P. Arnaud """bO,m•""'"•"-••<Diot...,..,..,,..HRB.
SCALE: 1f.25
ij I' :1125
PRO.ECTI DI/ AN : HANOI PILOTUGKT METROLINE Sadlon Nhon- Hrml RalwaySlllllan
nJ~N WONG sAT00 THI THIDlt:MTP HANOi Eo911 Nh&i-Ge H~ NOi
TITlflrtNBANv£: NHUE RIVER CROSSING
WQ'T SONG NHUI;:
DRA'MNGNO.BAN'IE SO :
PIER CAPS - P154 - DRAINAGE
M01Rl,J - P154 - THOAT NU'O'c
PIC-TEC-GAD-WVO-J04-18253-B 2A
~
~
ii!
t
I~0..
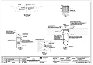
HAND RAIL SUPPORTAT SAME
COT ElO'TAYVIN
LOCATION AS VERTICAL I COLUMNS
TAI CONG VI TRI VOi COT IElUNG
LIGHT PARAPET
LAN CAN NH
ALUMINUM SHEET
TAMNHOM
r-----l
I I
I I
I I
I
I
I
I
I I
--1------- 1 -
1 I
I I
I I 70
I
I
I
I
I
DETAILA ;-- -----
CHI Tie.TA
Kinematic envelope- Straight alignment
E>llO'ng bao d{mg - Trin d11c7ng thang
-~--Y- Q~IW~~
,/,/ t'>111'.1ng bao tlfih cua than xii-...
/ / ',
/ / / ',,
/ / ',/ ~
I ~
I I
I I
I I
I I
5540 I
I
I
I
2590 I
4635
: I
1---------------1---------------~
 I I
'-, I _ ....//
I I I
I
I
I
I
I
I
I
I
ALUMINIUM SHEET BOTTOM TO / .1..1.
TAM NHOM DAY ~APPROX. 20mm GAP
BE ALIGNED ALL OVER THE BRIDGE KHOANG HOxAP XI 20mm
5£ DU'Q'C D1£U CHINH DOC THEO cAU
I
I
I

I

x
I
I
I
I
I
I
I
I
I
I
SECTION 2-2
MAT CAT 2-2
'l'i
n~ ~
~ .s
~ "'!! ~
!ii~
i ~
B
10-15mm THK. STIFFENER
Sl!ON TANG Cl!ONG DAY 10-15mm
5mm T K. MS CHEQUERED PLATE
TAM K£ 0 VUONG DAY 5MM
I
I
BANGTHEP 1-12 PE8239 1000
!Hi=~====;;;=:¥ TH P 1-12 (LOAI 8239) @1000
4 BANGTHEP U- 6.5h E 8248
4 THe.P U - 6.5h (LOA! 8248)
-A-APPROX. 20mm GAP
KHOANG HOxAP XI 20mm
DETAIL-A
CHI Tl~T -ASCALE: 1120
Tl LI;: 1/20
t----+---t----------------+----+-----t>------< CLIENT:
1----+---1----------------+----+-----11------1 CH09AUT~
2A 3MJ.1111 2nd .subml111lon ofl&dinlcaldea9'1 A. K HRB
" SCALE : 1/20
Tl LI;: 1/20
II
PROJECT IMPLEMENTATION CONSULTANT
TV VNI THIJC HleN DIJ NI
SYSTRAS.A
1C 01/1Ql10 u 1lld
18 21m11110 UPDATED
A. K
1--"'---+"'~""-+-=="--------------+-..._""K'----F'-'==--+'~=--i HANOI METROPOLITAN RAIL TRANSPORT PROJECT BOARD
1A 31m1110 Fim-.
REVISION DATE DESCRIPTION
SO'AIJOi NGAY NQI DUNG Sll'A001
PROJECTOllECTORIGIAMllOCD1Jm:
Alain B6chereau
..._ K - BAN DI/ANflOONG sAT DO lHI HA.NQI
DEDElll!Y omEJJl!Y a!IEFCFDEID
11Elt OT llllNIOTIE!t
I
I
FILENMIETtN BANvE:
DEQEDBYTllli;r~:
A. K
CHECKED BYsoAT :
A. Mhedden
STANDARD LENGTH FOR A TYPICAL PANEL FOR A SEGMENT OF 3M
CH1eu DAI Tieu CHUAN CHO 1ElO~ El1£N HINH CHO Elc:'.>T DAM 3M
FOR SPECIAL SEGMENTS, JOINT LOCATION SHOULD BE ADAPTED
a01 vOI ac:'.>T a~c Bli;T, v1 TRI M01 N01 caTH£ a1eu cHlNH CHO PHU HO'P
3000
2990
495 1000 1000 495
----,,---------,,---------,,----
I I I
---- rT _________ TT --------- T~ ----
1 I I I I I
I I I I I I
ELEVATION VIEW 1-1
MAT E>O'NG 1-1" SCALE : 1/20
Tl LI;: 1/20
I
I
NOTES : ~~~~~~~~~~~~~~~~~~~~~~~~~~~~~~~~~~~~~
GHI CHU :
1. BEAM AND BOLTS FROM STEEL CCT34 (TCXDVN 338:2005) YIELD STRENGTH: FY=210 MPA.
1. DAM VA BU LONG DONG TH£P CCT34 (TCXDVN 338:2005) GIOI ~CHAY Fy=210MPA
2. FIXING ARRANGEMENT FOR ALUMINIUM SHEETS SHOULD BE DONE ACCORDING TO SUPPLIER'S REQUIREMENTS.
2. Be:'.> TRI Lle.N K£T cAc TAM NHOM CAN TUAN THU THEO y£u cAu COA NHA CUNG cAP
FORIMTIKHOBANv£:
A1
STA1IS T1NH~ :
Technical Design
DAlEINGAY:
31/01110
ThLldlawl1111rru11tncti......-mi..t,~i:r~~
ii whole or in part orUlldfor anr p.,.,._wthcU lh9pricrwrillln
permlulondHRB.
PRO..ECTDlfm: HANOI PILOTLIGHT METRO LINE Sadlon Nhon-Hanol RallwaySllltlon
TIMN EllJONG sATElOTHI THIEll~ TP HANOi Elofn Nh&!·Ga Hl NOi
Tm.£IDleANVE: NHUE RIVER CROSSING
DECK- PARAPET-TYPICAL - SECTION & ELEVATION
CHIEFDESIGNERI CHOttileM THla Kt : ..,,..n>y_..,.,._.....,""""""""""'"-mOliHn'-Y
lo6n~mO-..,.,..,~f~VOnb6ncOoHRB.
DRAWINGNO.BANv£SO :
A. Bechereau PIC-TEC-GAD-WVO-J04-18800-B 2A
~
~
:l:
'ii l!;
t n~ ~
I
i ~
! ti
~~
~ ",!!
~ nIL
12000
:;AST-IN-SITU CONCRETE PLINTH THICKNESS= 1n~mm
CHOI B~ TONG 00 T~ CHO DAY= 100MM
150121 DRAINAGE SPOUT
12000
PIPE HANGER @2000c/c
;~-~-
JL
7
MANGTHUNll0C0150 .~
V SLOPE1.7%
"'bQ DOC- 1.1 %
- V / / ~ ·•
' ~//////////'.!
I I
I I
I I
I I
I I
I I
I I
I I
t::-.J
_ J
-~
_j ~ 2500 DRAINAGE PIPE
VV ONG THoAT Nl!Oc 2500
I I
I I
I I
I I
I I
I I
I I
I I
'--P
~20D121 DRAINAGE PIPE
ONG THoAT Nl!Oc 2000J
SECTION A-A
MAT CATA-A
°SCALE : 11100
TYLI;:: 1/100
12000
~~ ·~ 3000
g ~
::c .0
~ ~
c ~
IL t--
0 <
15000
150121 DRAINAGE SPOUT u-J '5 150121 DRAINAGE SF
/
MANGniUNl!Oc 0150 _/ MANGniUNllOC 015
SLOF
eooo
~ C//'.'.~~i//~ ///, I I n I n
~~~~/////Jr/ // l/ / / / ir/ ///
1000 DRAINAGE PIPE / 1000 DRAINAGE PIPE
ONG niOAT Nlf0C 1000 ONG THoAT Nlf0C 1000
2500 DRAINAGE PIPE
ONG THoAT Nl!Oc 2500
. ~ ---- ~~~ ----- !- - -~.:_~.=
, . '
I
~
I
~
I
~
1''-,,
I ''-
I '-'-
I ''-
''·I ' '
I '-::::
}
OF PIERI EXP. JOINT CAST-IN-SITU CONCRETE PLINTH THICKNESS = 100mm fOF DIAPHRAGMS PIER
0ATRl,J/MOI NOi GIAN Ny KHO! B~ TONG e>OTAI CHO DAY = 100MM
Q.. / · fJA TRl,J Tl!O'NG CHAN NGAM
I
I
I
I
I
I
I
I
I
I
I
I
I
I
I
I
I
DETAIL3
CHIT1e'T3 
(j; OF DECK I ALIGNMENT©
ClJABAN f.MTcAuiTuv£N ·
t----+---t----------------+----+-----t>-------i CLIENT:
1----+---t----------------+----1-----11-------1 CHOEIAUnr:
2A 3MJ.1111 2nd .subml111lon ofl&dinlcaldea9'1 A. K G. Maurte P. Amaud
1C 01/ 1Ql10 Uodatlld G. Maurte P. Amaud
18 2MJ&"IO Updatlld G.Maurie P,Amaud
1A 23ftlfll10 Fim-. G.Maurie P.Amaud
REVISION DATE DESCRIPTION IHlllEDllf CllJEFOFDBD
SC/ADO! NGA.Y NQI DUNG SO'A DOI 1111.r C1!lN!lillnETIE
HRB
II
PLAN VIEW
MAT BANG
s·cALE: 11100
TYLI;:: 11100
PROJECT IMPLEMENTATION CONSULTANT
TV VJN THVCHleN DIJ AN
SYSTRAS.A
PROJECT DIRECTORIGIANElOcD./AN :
Alain B'9chereau
ALENMIEITtN BAN'IE:
DESIGNED BYTll1£r~ : FORIMTI~BAN v£ :
A. K A1
I
STATUSlT1NHT~:
BASIC DESIGN
llilET K£ ca sa
DATEINGAY:
23/06110
PRO.ECTI DI/ AN : HANOI PILOTUGKT METROLINE Sadlon Nhon- Hrml RalwaySlllllan
ru~N WONG sAT00 THI THIDlt:MTP HANOi Eo911 Nh&i-Ge H~ NOi
TITlfl~NBANv£ : NHUE RIVER CROSSING
WQ'T SONG NHUI;:
DECK - DRAINAGE PRINCIPLE - MISCELLANEOUS -1 / 4
BAN ~TcAU - NGUY~N L~THOATNIJOC - cAC BO P~N PHl,JTRO' - 14
DRA'MNGNO.BANv£ so: IPIC-TEC-GAD-WVO-J04-18810-B 2A
~Ii A
~~J
~z z
l/l .Z
~i~g 3000 15000 17000 15000 15000
~ ~
~ i
~ ~ ::c ~
~ tooc :::>
c itu.. I!: u.. too
0 '(
1500 DRAINAGE SPOUT o ~
I
c;Jg
1500 DRAINAGE SPOUT PIPE HANGER @2000c/c
/ "'"'"""'°"""'
~
~o
/"'"'"""~~M ~ /~TIE<>""'......SLOPE 2.4%
bO DOC-2.4%
~~~~
I// ,f / A I II I I II •
I ID I I I n
~'l/'.
V/,0//-1 1/// I I I I I I I ,.
'
(/ / I/ /
~~- %%% ///// JI /// '//// ,11, / / / / _L.
////Jt/ // ~//A'.7/7/ 200121 DRAINAGE PIPE
1000 DRAINAGE PIPE / 1000 DI
ONG TliOAT Nl/OC1000 ONGTliC
:PIPE - --  1000 DRAINAGE PIPE ONG llioAT Nl!O'c 200121
: 1000 ONG TliOAT Nl/OC 1000
I
_j Q._
2500 DRAINAGE PIPE
/
ONGTHoAT NllOC250121
I
I I- ------- - -1-
-~---------- ~~----~----~----~r==~----~----~----~----------------- --~----~----iT - --
T~'i/ //
r- , / / - ·.:: '-'-'-/ ' // / ,//'- ,/ "!/'- ' /// s/ / ,,
JZ/ I
/ .
., , . . I .
' 1 /_.),,,, r-___.:::--"- ~ I ~
I 1''
I
/ j'/ 1,,I I ,, / / I
I I
,, / / I
I I
,,
CROSSING WITH NHUE RIVER
/ /
I,, / /
I I
I I
,, / / I
I II I
,,
Cat qua song Nhu~
/ /
I,, / /
~ ~
I I
'r -~:--, ,,---,;/ I
Lk LkI I
I I '" _,...C:] I I
I I
"==' I" " / /
"==' I
"" / /
I I I "'
V / I ~
I I J ':::_,
/ V
I/ /
I I I ""
_,. _,. I
I
I I I '~~----------------------------- ----------------------------- ~~/ 1 I
I I I I I
I I I
SECTl~N A-A
I I
I I I I I
I I I M,;T C TA-A I I
I I I I I
I I I SCALE : 1/100 I I
I I I TYL!;: 1/100 I I
I I I I I
I I I I I
fOF DIAPHRAGMS PIER I I I I I fOF DIAPHRAGMS
OA TRU TLrONG CHAN NGAM I I I I I OATRU Tl/ONGCHA
------ ------ >-------- ------ ------r-------- ------ ------ ------ ~(~ ----- ------ ------ too------- ------ ------ ------- ------ ------
-------?s2r-----------------11---------- ~PS1 SA1 SA2 SA3 SA4 SA5 SAB SA7 SAS SA9
~ SB9 sea SB7 SB6 SB5 SB4 SB3 SB2 SB1
1- - - - - - - ------ ------ 1---- - - - ------ ------ // / /
---- ------- ------ ------ - ------ ------ -------
~:=======
---- _] ~ - - --3
,__ ~- - -- -
~~
- - - - ---c ---,[ _ -~ --------- - --------_, 1S00DRAINA 3ESPOUT ~
-------- ------ r--------------- -I - - - - - - -
- ~-/ ~ ANG THU N-lfO ~ 121150
------ ------
7 /'/:
---- ------ ------- ------ ------ ------ --- - ---------- ------ --------- ---------, -- ,-- - --
I
IJ I ct ~ ~ I
I I
-4~- · - - - · -- · -- · -- - - - - · ·- -
1
/I'·.,,,ni,.J. DRAINAGE '"t 200121 D~J 
~~
I
I:>IPE INAGEPIPE
--------f~i'IG"1tlOATNU'O'e2500----- r----------oNGllleA~NVO& 2000-- ------ ------ 1------- ------ ------ ------ ------ ------- ------ ------ ------ --- - ---------- ------
---------r--~------
____:=Li .------~ L________, c -~
--------1---------
f'- - - -
,__ ______1---------- --- - -- --- 1--- ---- - - --- - --- --- --- - - - - - --- - - ----- - - ----- - ------ ----- --- --- - _ _ _ .J _________}_________
-------- ---------- ------ ------ >-------- ------ ------1-------- ------ ------ ------
~
------ ------ 1-------- ------ ------ ------- ------ ------ ---------- ---------
--------i---------------- ------ >-------- ------ ------r-------- ------ ------ ------- ------- ------ ------ 1-------- ------ ------ ------- ------ ------
----------i---------
I I I
PLAN VIEW
MAT BANG
SCALE : 1/100
TYLI;: 1/100
CLIENT:
•PROJECT IMPLEMENTATION CONSULTANT FILE NAME1TENBAH~ : SCALE TY~ : STA1US11Ni~ : PROJECTIll/AN: HANOIPILOT LIGHT MEIRO LINE SectionNhon -Hanel RalwaySlallon
' CHO£lAU11: Tl! VANllil/C HI~ DVAN PIC-TEC4AD-WYO-JOl-11111-B_2A.DW'a - BASIC DESIGN
TUruO~G sAT0011-llTHIOl~M TPHANQI flOfjll Nh6n -Ga HA NOiI';
SYSTRAS.A
TH1£TK£ caSO
u DESIGNEDBYlHI~ IQ;: FORMAT KHO BAH~: DAlENGAY: TTll.E~NBAH~:
HRB NHUE RIVER CROSSING
~~ A.K A1 23106110 WQ'T SONG NHue
~~ 2A 31l/04111 2nd 1ubmllillon aftachnlcal dalllgn A.K tl. Mauril P. Amaud
~ il
1C 01110/10 Uodatad A.K tl. Mauril P. Amaud CHECl<EDBYSoAT: Tiii• dnrwtng mu.tnot b9ellhari..ii.t.mp.dorallwwtm ~ DECK - DRAINAGE PRINCIPLE - MISCELLANEOUS - 2 / 4
fl. Mauril P, Amaud HANOI llEIROPOUTAN RAIL TRANSPORT PROJECT BOARD
ill~
18 2Ml8110 Updatad A.K G. Mauris in whol9orin .ior UHd 1or1r1rprupo19witloutl'll piol"writlln
BAN ~T cAU - NGUY~N TAC THOAT NllO'c- NHO'NG NGUY~N TAC Kl-~
1A 23/!l6110 Firwt.l11ue A.K P. Mauril P. Amaud BAN DI/AN OWNG BAT00 THI HA NQI pwmillioflofHRB.
I'!!I REVISION 0.-.lE DESCRIPTION
-51' -51' O&CFIHCll
PROJECTDIRECTORGIAMllOcDI/AN: CHIEF DESIGNERCHONHleMTHI~ ia;: Bin vi ntrkhllng cruqc ph6p •ll dlil'la dwt mQI him llOc:,. ml)I:.,Mr DRAWING NO. BAH~ SO:
IB SOADOI NG/.Y NQI DUNG80'ADOI lHl!TI! !lli.T Oll1t111M1HI!Tll£ Alain B6chereau P.Arnaud -oo.m•""""•"-••""""''*'""""llinalllHRB. PIC-TEC-GAD-WVO-J04-18811-B 2A
~;!!j
:l:
'ii I';
~
u~~
I
~~
~ il
ill~
I'!!I
~ B...
2A 31l/04111 2nd 1ubmllillon aftachnlcal dalllgn
1C 01110/10
u -
~INAGEPIPE
'TNOOCIODl/J
PS2
12000
1000 DRAINAGE PIPE
ONG THOAT NLJOC 10Dl/J
~OF DIAPHRAGMS PIER
~OA TRU TIO'NG CHAN NGAM
SB1'
r-----~
---------t--------- ~-
---------r---------
HRB
SB2' SB3'
18 2Ml8110 Updatad
1A 23/!l6110 Firwt.l11ue
A. K . Amoud HANOI llEIROPOUTAN RAIL TRANSPORT PROJECT BOARD
t----+----l---'--------------4-A.-K----4----+-.-Am-•-ud----l BAN DIJ'AN OWNG BAT00 THI HA NQI
REVISION 0.-.lE DESCRIPTION -51' -51' O&CFIHCll
SOADOI NG/.Y NQI DUNG80'ADOI lHl!TI! !lli.T OilltllOM1111!111£
12000
1500 DRAINAGE SPOUT
MANG THU NllO'c 0150
SECTION A-A
MAT CATA-A
°SCALE : 1/100
12000
T-IN-SITU CONCRETE PLINTH THICKNESS= 100
1500 DRAINAGE SPOUT
MANG THU NLJOC "150
2000 DRAINAGE PIPE
ONGllioAT NLJOC2000
~
~0 z..., '!!i
2500
I
I
I
I
I
I
I I
I . I
w
• Cl
0::
w
ii:
z
I
I
I
I
I
I
I I
I . I
w
TYLS: 1110wT-IN-SITU CONCRETE PLINTH THICKNESS= 100mm
KHO! B~ TONGE>O TAI CHO DAY = IOOMM
SB4' SB5'
PLAN VIEW
MAT BANG
SCALE : 1/100
TYLS: 1/100
SB6'
PROJECT IMPLEMENTATION CONSULTANT
TlfVANTHl/CHI~ OVAii
SYSTRAS.A
PROJECTDIRECTORGIAMllOcDI/AN:
Alain B6chereau
SB7' SB8' SB9'
FILE NAME1TENBAH~ :
PIC-TEC4AD-WYO-JOl-1111H_2A.DW'a
DESIGNEDBYlHI~ l(J;:
A.K
SCALE TY~ :
FORMAT KHO BAH~:
A1
STAlUSllNi~ :
BASIC DESIGN
TH1£T K£ caSO
DAlENGAY:
23/06/10
CHECl<EDBYSoAT: .,,.0 0...,ngm..tnotboo1.,.,__,__.,.......___.
G. Mauris inwhol9orin.ior UHd1or1r1rprupo19witloutl'llpiorwritlln
1---~~~~~~~~--I l)Wl'rilliondH~.
CHIEF DESIGNERCHONHteMTHI~~: Mn "'"*'""'"•._ph6p .~ ""'" ouot""""'"'"'""'mQI "'*1..,
P. Arnaud .,..oo,m•""'"•"-••""'"''*'""""...,*"RB.
PROJECTIll/AN: HANOI PILOT LIGHT METRO LINE SectionNhon -Hanel RalwaySlallon
TUru O~G sAT00THITHIOl~M TPHANQI flOfjll Nh6n -Ga HA NOi
TTll.E~NBAH~: NHUE RIVER CROSSING
WQ'T SONG NHue
DECK - DRAINAGE PRINCIPLE - MISCELLANEOUS - 3 / 4
BAN ~T cAU - NGUY~N TAC THOAT NllO'c- NHO'NG NGUY~N TAC
DRAWING NO.BAH~ SO:
PIC-TEC-GAD-WVO-J04-18812-B 2A
~;!!j
~
'ii I';
~
u~~
I
~~
~ il
ill~
I'!!I
~ B...
2A 31l/04111
1C 01110/10
SLOPE 1'*t
eoooc=1 %
I
I
SLOPE 1%
EQD0C=1%
HI
I
PIPE HANGER
cAITRE00NG
2000 DRAINAGE PIPE
I 1500 DRAINAGE PIPE
) ONG THoAT NU'O'c 1501'1l
26
ONG TlioAT NfO'c 2001'1l
CHITIET-1
~ -1-~~DETAIL - 1
SECTION B-B
MAT CAT B-B
SCALE: 1(.25
TY LS: 1/25
3THK. PLAIN WASHER
3THK. VONG El;:M PHANG
TOP OF DECK
---r-,,rl..,,,.,,....,..,.....,,;,.--.----" EINH BAN ~T cAU
11.50HOLES FOR 100 BOL
cAc LO 11.51'11001 VOi BU LONG 10l'll
2nd 1ubmllillon aftachnlcal dalllgn
u -
2 NOS. M10 NUTS TO BE ASSEMBLED ON
2EINH 0c M1DflllQ'C LAP ~T VAo
ABOLT AND THEN WELDED TOGETHER
MOT BU LONGVA SAU EOElfO'C HAN VO'I NHAU
TO ENSURE THE CONTINUITY OF THREADS.
EE flAM BAO SI/ LIEN Tl,JC cOA REN.
20x20x 3 PLATE
DETAIL-2
CHI Tl~T-2
SCALE: 1/1
TYL!;: 1/1
HRB
18 2Ml8110 Updatad
1A 23/!l6110 Firwt.l11ue
A. K . Amoud HANOI llEIROPOUTAN RAIL TRANSPORT PROJECT BOARD
t-----+----l----'--------------4-A..-K---4-----+-.-Am-•-ud----l BAN DI/AN OWNG BAT00 THI HA NQI
REVISION 0.-.lE DESCRIPTION -51' -51' O&CFIHCll
SOADOI NG/.Y NQI DUNG80'ADOI lHl!TI! !lli.T OilltllOM1Hl!T11£
[IT1jI
DETAIL- 3
CHI Tli;T- 3
SCALE: 1f.25
TI' LI; : 1125
PROJECT IMPLEMENTATION CONSULTANT
Tl! VANllil/C HI~ DVAN
SYSTRAS.A
PROJECTDIRECTOR GIAM llOcDI/AN:
Alain B6chereau
--
53
·~ 2-'
2 2' 2' 2 2 •
,~ ~ ,~ 1
I
"' "c ~ Bmm THK.00
~
IJ r---
"- [... ~
I-- i. $ ~ DRAIN PIPE 1500c
<O
I--~
• 50 x 3mm THK. GALVANIZED
MA KEM DAY• 50x 3mm
ADJUSTABLE ANCHOR STRAP
ElAI NEOfl1£U CHINH flllO'C
WITH 12mm 0 HILTI EXPANSION
VOi GIAN NO HILTI 12mmrzJ
BOLTS OR SIMILAR APPROVED
• • ONG TlioAT NllO'C I'll150
I BO I 1BO I BO I
300
SECTION C-C
MATCATC-C0
SCALE: 1/5
TY i._e:1/5
100 BOLTS
UL0NG100
DRAINAGE SPOUTAND COLLECTION PIT ASSEMBLY SHALL
MANG THoAT NllO'cVA BO GIENG TliU NU'O'c SE
BE FABRICATED FROM MILD STEEL AND AFTER FABRICATION
EU'O'C TAO RA ID Tli£P NON VASAU KHICHE: TAO
THE COMPLETE ASSEMBLY EXCEPT GRATING SHALL BE
BO aAYEO TRCf LOOI SEEllO'C
GIVEN A HOT DIPPED GALVANIZED COATING.
M.S. FLATS 12X25
DETAIL -1
CHI Tli;T-1
SCALE: 115
TY Ll;:1/5
DET~CHIT1£T2
6mm THK.
DRAINAGE SPOUT SHALL BE PLACED IN TRUE LINE
MANG llioAT NllO'c SEEllQ"C ~T TRONG E0NG El/UNG
AND LEVEL BEFORE CONCRETING THE SEGMENT
VA CAO eQ TRl.J¢'C KHI00 BE TONGflWIN
200mm 0 RUNNER PIPE
ONG DAN 200mm rzJ
H
FILE NAME1TENBAH~: SCALE TY ~ : STAlUSllNi~ : PROJECT OilAN: HANOI PILOT LIGHT METRO LINE SectionNhon -Hanel RalwaySlallon
PIC-TEC4AD-WYO-JOl-1111:Ml_2A.DW'a
BASIC DESIGN
TH1£T K£ caSO TUru O~G sAT00THITHIOIEM TPHANQI flOfjll Nh6n-Ga HA NOi
DESIGNEDBYlHI~ IQ;:
A. K
FORMAT KHO BAHvE:
A1
DAlENGAY:
23/06110
CHECl<EDBYSoAT: .,,.00...,ngm..ino1"""'"'••-.-...-..__.
G. Mauris inwhol9orin.ior UHd1or1r1rprupo19witloutl'llpiorwritlln
1----------~ l)Wl'rilliondH~.
CHIEF DESIGNERCHONHleMTHI~ia;: Mn "'"*'""'"•._p116p .~ ""'" ouot""""'"'"'""'mQl "'*1..,
P. Arnaud .,..oo,m•'"""•"-••o!lnat*'a'*''*'*"RB.
TTll.E ~NBAH~ : NHUE RIVER CROSSING
WQ'T SONG NHue
DECK - DRAINAGE PRINCIPLE - MISCELLANEOUS - 4 / 4
BAN ~T cAU - NGUY~N TAC TIHOAT NllO'c- NHO'NG NGUY~N TAC
DRAWING NO.BAH~ SO:
PIC-TEC-GAD-WVO-J04-18813-B 2A
c- /4
~
~ I!!
5i ~
t
ui w .!:
F %
;!I $i
!;l 8
uii: B
P151
3" 2111W11
2A 30KM/11
10 D111W'ID
Updatlld
DETAIL-1
CHI Tl~T 1
TRANSITION SLAB REMOVED
BAN QUA ElO DO BO
FRAME
KHUNG ~======;:::::====~
I~ - 13000 ~I
A.K
2nd •ubmll1lon oflllchnlcal daolgn A. K
UPDATED A.K
//,
DETAIL-1
______ J CHITl!:T1
STAGE2 :-
CROSSING WITH NHUE RIVER
CM qua sOng Nhue
GIAI oo~ 2
:-_PIER SEGMENT PS1 & PS2 CASTED ON SCAFFOLDINGS.
- PHAN ElOAN TRV PS1 & PS2 Ell!O'C aoc TR£N GIAN GIAO.
- STRESS CANTILEVER TENDON
- cAP O'NG SuAT TRU'O'c CHO PHAN HANG
- REMOVE SCAFFOLDING
• DO e0 GIAN GIAo
STAGE3 :-
GIAI00~3:-
CROSSING WITH NHUE RIVER
CM qua song Nhue
- PLACE FORM TRAVELLER IN POSITION FOR CONSTRUCTION OF SEGMENT
• ~T VM KHUON DI EJQNG V/.o VJ TRflHI cONollOT DAM
SA1 & SA1 ' FOR CANTILEVERS ON PIER P152
SA1 &SA1' CHO DAM TREN TRl,I P152
- PLACE SCAFFOLDING FOR CONSTRUCTION OF LATERAL SPAN UP TO 5.0m
-~T GIAN GIAo ll~ lHI c0NG NHIP ~N lOl 5.0m
FROM AXIS OF PIER P151
T(f TRl,I COA TRl,I P151
-WHILE BACKFILLING REMOVE LINED EXCAVATION
-TRONG KHI LAPaAT DO BOVNI CHONG
- REINSTATE TRANSITION SLAB AND ROAD FINISHING
- HoAN lRA BAN QuAllO VA HoAN lHll;N lll10NC3
CROSSING WITH NHUE RIVER
ci1t qua song Nhue
STAGE 4 :-
GIAl~4:-
HRB
- SEGMENT SA1 & SA1' CASTED
.IJOT SA11,SA1"a.l.llllc
- STRESS CANTILLEVER TENDONS FOR SEGMENT SA1 & SA1'
- cANG cAPHANG C1NG SUATTRl10c CHO llOT SA1 & SA1'
- MOVE FORM TRAVELLER TO CAST NEXT SEGMENT SA2 ON MAIN CANTILEVER
- DI CHIJY£N VAN KHUON DIEJQNG El£ EIOC BOT SA2 T1£P THEO TREii HANG BEN
FOR PIER P152
CHOTRl,J 1'152
- MOVE FORM TRAVELLER TO CAST NEXT SEGMENT SA2' ON LATERAL CANTILEVER
• DI CHIJY£N VAN KHUON DIEIQNG El£ EIOC llOT 8A2" T1£P THEO TREii NHIP HANG ~N
FOR PIER P152
CHO TRl,J 1'152
CROSSING WITH NHUE RIVER
Ci1t qua sOng Nhu&
•PROJECT IMPLEMENTATION CONSULTANT
Tl1 VAN THl,IC HleNDI,/ AN
SYSTRAS.A
FILE NAA1ElTtN e,1,1/£:
PIC-T'EC-GCM-¥1VDJOBD11.flJl',DNG
DESIGNED BYTHli;rK£ :
A. K
1C ~B/1D
18 2Ml&'ID
Updatad A . K
1--;.;;;......p;;;.;;;;;..;.;;.....,_u""PllA=TED;;......_ _ _ _ _ _ _ _ _ _ __._A;;..;.. K;;....__ _.;.;;;;;;;;;;;...-+;.;;.;;;..;;;;;;;...-l HANOI METROPOLITAN RAIL TRANSPORT PROJECT BOARD CHECKED BYSlll.T:
G. Maurls
1A 31m1/1D
REVISION DATE
SLrAOOI Nal.Y
F1ro1 - . " ·K BAN DI/AN allONG sA.raO THI HANQI
DESCRIPTION
NQI DUNGsLrA!lOi
IHIHl!BI
HIM!
CllllClllBI
IOI.!
PROJECTDIRECTORIGIAMaocDI/AN: CHIEF~IGNERCll) NHleMTH1£r Ke:
Alain B~cheraau P.Amaud
,---1
I
STAGE 1 :-
GIAl~N 1:-
- REMOVE EXISTING TRANSITION SLAB (PART)
- DO' BO BAN QUA£>0 Hll;N CO (PHAN)
- EXECUTE LINED EXCAVATION (CONSTRUCTION DESIGN)
- THl,l'C Hlf;N E>AO CO VAN CHONG (THl!:T Ki: THI CONG)
- MAXIMUM ALLOWABLE HORIZONTAL DEFORMATION: 100mm
- B1£N DANG THEO PHU'ONG NGANG CHO PH£P LON NHAT: 10
- COMPLETE FOUNDATION AND SUBSTRUCTURE
- HOAN THANH PHAN MONG VA Ki:T cAU PHAN DOOi
/. / //
Lcc--m--m1
NOTES:- ~~~~~~~~~~~~~~~~~~~~~~~~~~~~~~~~~~~
GHICHIJ:
- THERE SHOULD NOT BE MORE THAN 1 SEGMENT DIFFERENCE BETWEEN BOTH SIDES OF THE CANTILEVER.
-XIN LllU YRANG SE CONHlriU HON MOTSii KHAC BiST Vri PHAN ~N GIO'A HAI BEN COA El°"'NElOC HANG
- STRESSING CAN BE STARTED ONCE 30 MPA IS ACHIEVED (CYLINDRICAL).
- KEOcANGCO THEBAT ElAU KHI ~T ElllQ'C 30 MPA (HINH TRl,J)
- MAXIMUM WEIGHT OF FORMTRAVELLER CONSIDERED IS 50T
-TRONGLllQ'NGLON NHATCOA XEElOCElU'O'C XEM XET LA 50T
SCALETYI.Ii:
FORMATKHO BAN VE:
A1
STAlUS TfNH~G :
Teclmical Design
DATEINGAY:
31/01/10
Thil <Rwi'IDmUll:notbe eithlrlOlrled,<q>ied«otl'lll'Wile NP'Odiacl
ln wtdea h P11rt orul8dfor•nr prupme wllhoul:.. prlor'Mltsl
parmlllllonot HRB.
......My_..,.,._.......ng ..... ..,.. .... _rn(llpMnt.y
.... ~ ... - ......... ~t~ YGnb6n cOo HRB.
PROJECT DI,/AN: HANOI PILOTLIGHT METRO LINE Sedian Nhon•HantiRailwayS1atial
TIJY£NflOONG sAr ElOllilTHIfllEMTP HANQI Elatn N~n · Ga Hi NOi
Tm.E TtNllMIVE: NHUE RIVER CROSSING
VU'QT SONG NHUI;:
DRAl'l1NGNO. BANVESO:
CONST METHOD - 1 / 3
PHLIONG PHAP THI CONG - 113
PIC-TEC-GCM-WVO-J04-18011-B 3A
"
~
~ I!!
5i ~
t
ui w .!:
F %
;!I $i
!;l 8
uii: B
3A
2A
1D
l
1:-r:- :t-r
ww
I l
1;r;- ;t;1
wUJ
2111W11
30KM/11
D111W"IO
31500
//, //,
/// ~ / //
Updatlld A.K
2nd •ubmll1lon oflllchnlcal daolgn A. K
UPDATED A.K
/'. ;...:: ,---1
I
Lm--m--m1
HRB
STAGE5:-
GIAI EOAN 5 :-
- SEGMENT SA2 &SA2' CASTED
-DOTSA2&SA2' aADOC
- STRESS CANTILEVER TENDONS FOR SEGMENTS SA2 & SAZ
- cANG cA!> HANG ONG SUAT Tlll10'c CHODOT SA2 & SA2'
- MOVE FORM TRAVELLER TO CAST NEXT SEGMENT SA3 ON MAIN CANTILEVER
- DICHUYEN VAN KHUON DI DONG De DOCDOT SA311eP THEO1R£N HANG BeN
FOR PIER P152
CHOTRl,I P152
- MOVE FORM TRAVELLER TO CAST NEXT SEGMENT SA3' ON LATERAL CANTILEVER
- DICHUYEN VAN KHUON DI DONG De DOCDOT SA3'TleP THEOTR£N NHIP HANG B~N
FOR PIER P152
CHO TRl,I P152
STAGE6:-
GIAl~N8:-
CROSSING WITH NHUE RIVER
CA! qua sOng Nhue
- MAIN & LATERAL CANTILEVER COMPLETE FOR PIER P152
- HoAN THANH NHIP HANl3 l!eN & CHINHCHOlRU P162
- LATERAL SPAN ES1 COMPLETE UP TO 5.0M FROM AXIS OF PIER P151 ON SCAFFOLDING
- HoAN THANH NHIP B~N ES1 n'.715.0M WTIM1Rl,I P151 TREON GIAN GIAo
- STRESS LAST PAIR OF CANTILEVER TENDONS
- cl.NG 1<£0 ~ CUOI CtlA cAccAPc.l.NG HANG
- DISMANTLE FORM TRAVELLER FROM CASTED CANTILEVERS OF PIER P152 AND REASSEMBLE TO CAST CANTILEVERS OF PIER P153
- THAo DCIVAN KHUON DIDONG1R£N cAccANH HANGaAOOC C0AlRU P152 VA LAP RAP ~ D~DOC cAccANH HANG COA1RU P153
31500
I
I
'
STAGE 7 :-
GIAI 00.!IN 7 :-
CROSSING WITH NHUE RIVER
CA! qua song Nhue
·CASTTHE STITCH SEGMENT S1 FOR LATERAL SPAN BETWEEN PIERS P151 &P152
- D0CD0T Hr;JP LONl3 81 CHO cAc NHIP B~N 1310'A cAclRU P151 &P11i2
-STRESS CONTINUITY TENDONS FOR LATERAL SPAN BETWEEN PIERS P151 &P152 ~--~
CROSSING WITH NHUE RIVER
CAI qua song Nhut
CROSSING WITH NHUE RIVER
,---1 I
I I
L='=- - _..._ - - = ....,J
•
PROJECT IMPLEMENTATION CONSULTANT
Tl1 VAN THl,IC HleN DI,/ AN
SCIJ.fTYI.Ii: STAlUS TfNH~G :
PIC-T'EC-GCM-¥1VDJOBD12'8Ji',DNG
SYSTRAS.A
DESIGNED BYTH1£TK£:
A. K
FORMATKHO BAN VE:
A1
Teclmical Design
DAlENGAY:
31/01/10
/ /,
31500
PROJECT Ill,/AN: HANOI PILOTLIGHT METRO LINE Sedion Nhon-HantiRailway S1ation
TIJY£NflOONG sATElO THITHIfll~M TP HA NQI Elatn N~n · Ga Hi NOi
Tm.E~NBANVE : NHUE RIVER CROSSING
VU'QT SONG NHUI;:
1C ~8110
18 2Ml&'"ID
Updatad A.K
1--=--i;;;=-"--+-"u"'PDA=TED'--- - - - - - - - - - - - 1 ' - A " ".K"----==-.;.;..;;;=---1 HANOI METROPOLITAN RAIL TRANSPORT PROJECT BOARD
CHECKED BYSlll.T:
G. Maur1s
Thil <Rwi'ID mUll:notbe eithlrlOlrled,<q>ied«otl'lll'Wile NP'Odiacl
ln wtdeah P11rtorul8dfor •nr prupmewllhoul:.. prlor'Mltsl
parmlllllonot HRB.
CONST METHOD - 213
PHLIONG PHAP THI CONG - 213
1A 31m1110
REVISION DATE
SLrAOOI N(3,y
F1ro1 -. ....K BAN DI/AN allONG sA.raO THI HA NQI
DESCRIPTION
NQI DUNGsLrAfJOI
IHIHl!BI'
HIM!
CllllClllBI'
IOI.!
PROJECTDIRECTORGIAMaocDI/AN: CHIEF ~IGNERCll) NHleMlll1£rK£:
Alain B~cheraau P. Amaud
......My_..,.,._.......ng ..... ..,.. .... _m(llpMnt.y
....~ ...- .........~t~'"""'"""'"""·
DRAl'l1NGNO. BANVESO:
PIC-TEC-GCM-WVO-J04-18012-B 3A
~
~ I!!
5i ~
t
ui w .!:
F %
;!I $i
!;l 8
uii: B
STAGE 9 :-
GIAI OOAN 9 :-
. - CASTTHE STITCH SEGMENT S2 ON LATERAL SPAN BETWEEN PIERS P153 & P154
- ElOC PHAN E>OAN HQ'P LONG S2 CHO NHIP BeN GiO'A TRl,I P153 & P154.
- STRESS CONTINUITY TENDONS FOR LATERAL SPAN BETWEEN PIERS P153 & P154
-TAO liNG SUATBO CAP LleN c~OI VOi NHIP BeN GiO'A cAc TRV P153 & P154
~~~~~~~~~=Ef==f="9~~~~~~~ ~m-~-~- =--~--~-=--~1
-~-=:±~~~~~~~="=-=~=fm
-- ../{/~
I
I
Lm--m--ro1 CROSSING WITH NHUE RIVER
CAt qua song Nhuf
STAGE
10
. - MOVE FORM TRAVELLER TO CAST THE STITCH SEGMENT S3 BETWEEN TWO CANTILEVERS OF MAIN SPAN
GIAI eo~ 10-,_ -DI CHUY£N VAN KHU<".lN DI El0NG £>£LAP PHAN EloAN HQ'P LONG S3 GiO'A HAI DAM ElO NHIP CHINH.
- APPLY LONGITUDINAL JACKING OF 200T ON BOTH CANTILEVERS (RESULTANT OF FORCE TO BE APPLIED AT 0.77M FROM TOP OF TOP SLAB)
P151-DONG KICH DOC 200TAN eeN CA HAI DAM HANG (K£TQUALA Ll)'CElATTAJ 0.77M TC!EllNH CO.ATAM BAN EllNH)
STITCH SEGMENT S3 BEiWEEN TWO CANTILEVER OF MAIN SPAN CASTED
P1
I l // /
warSTAGE 11 :- -REMOVE THE JACKS (AFTER REACHING 25Mpa.)
GIAI OOAN 11 :- - THAO cAc KICH (SAU KHI E>AT 25Mpa.) P1
- STRESS FIRST STAGE OF CONTINUITY TENDONS FOR MAIN SPAN
- TAO UNG SUAT GIAI E>OAN E>AU Tli:N COA BO cAP Lli:N TUCH CH NHIP CHINH
/ //
__ ../ /~
I
I I
:c--m--m1
STAGE 12:-
CROSSING WITH NHUE RIVER
CAt qua sOng Nhuf
s
CROSSING WITH NHUE RIVER
CAI qua song Nhu~
GIAI OOAN 12 :- - REMOVE FORM TRAVELLER
- THAO VAN KHU<".lN DI ElONG
- STRESS ADDITIONAL TENDONS AT TOP FOR PIERS P152 & P153
- GANG KEO cAG GAP O'NG SUAT TRllCJG BO SUNG T~I EINH EOJ VOi TRU P152 & P153
- STRESS REMAINING SECOND STAGE OF CONTINUITY TENDONS FOR MAIN SPAN
- T~O UNG SUAT GIAI El~ HAI BO CAP Ui:N Tl,IC CHO NHIP CHINH.
- INSTALL SIDL
- LAP ElAT TTNH TAI GIAI ElOAN 2.
--- /.
I
I
Lm--m--ro1
,--- '-:"
I I
I I
Lm--ur--m1
f
Lu;--u;--u;J
/.
NOTES:- ~~~~~~~~~~~~~~~~~~~~~~~~~~~~~~~~~~~
GHIGHIJ:
- THERE SHOULD NOT BE MORE THAN 1 SEGMENT DIFFERENCE BETWEEN BOTH SIDES OF THE CANTILEVER.
- XIN LLJU y RANG 5!; coNHl~U HO'N MOT 511 KHAC Bl~ v~ PHAN EC»,.N GJ(}A HAI B~N cOA E~N EOC HANG
- STRESSING CAN BE STARTED ONCE 30 MP.A IS ACHIEVED (CYLINDRICAL).
- KEO cANG c0 TH~ BAT EAU KHI ~T EllO'C 30 MPA (HINH TRU)
- MAXIMUM WEIGHT OF FORMTRAVELLER CONSIDERED IS 50T
- TRONG LllO'NG ON NHAT GOA XE E OGE lfO'C XEM ~T LA 50T
SM SAS' SA7' SAS' I
B4 I SB3 1 SB2 SB1 1P1 1 SB1' SB2' I SB3' I SB4'
_ 1_ _ _ 1 _ - --.t:== ::L- - _L __ _J _
/ // / >--r - - - __J /~
I I
I I
Lcc--m---w1
o--~-+-~~+--~~~~~~~~~~~~~_._~~~..._~__....._~___. Q.IENT:
o--~-+-~~+--~~~~~~~~~~~~~_._~~~..._~__....._~___. CHOflAuru:
3" 2111w-11 Updatlld A.K
2A 30KM/11 2nd •ubmll1lon oflllchnlcal daolgn A. K
10 D111W"ID UPDATED A . K
1C ~B/1D A . K
HRB
- IF TOP OF TRANSITION PIER CAP NOT YET CASTED (CONTRACTOR REQUIREMENT
- N£U E>INH MO TRl,I CHUY£N Ti£P CHlJAE>lJQ'C E>OC (Y£u cAu CO.A NI-IATHAU CHO
FOR PT INSTALLATION), CAST ITANDTHEN INSTALL ADJACENT STRUCTURE.
LAP ElAT PT), E>OC NO VA SAU E>O LAP ElAT K£T cAu u£N K£
CROSSING WITH NHUE RIVER
CM qua song Nhut
•PROJECT IMPLEMENTATION CONSULTANT
Tl1 VAN THl,IC HleN DI,/ AN
SYSTRASA
FILE NAA1ElTtNBAN/£:
PIC-T'EC-GCM-¥1VDJOBD13-BJl',DNG
DESIGNED BYTH1£TK£ :
A. K
CHECKED BYSlll.T:Updatad
18 2Ml&'"ID UPDATED A . K HANOI METROPOLITAN RAIL TRANSPORT PROJECT BOARD
!-----+---+----------------,.-.K---4----1-----l BAN DI/AN llWNG IA.TllOTHI llANQI
G. Maur1s
1A 31m1/1D Flrotlla»
REVISION DATE
SLrAOOI Nal.Y
DESCRIPTION
NQI DUNGWAfJOI
IHIHl!BI'
HIM!
CllllCIDBI'
IOI.!
PROJECTDIRECTOR IGIAMaocDI/AN: CHIEF~IGNERCll) NHleMlll1£rK£:
Alain B~cheraau P. Amaud
SCALEITYLE:
FORMATKHO BAN VE:
A1
STAlUS TfNH~G :
Teclmical Design
DAlEINGAY:
31/01/10
Thil <Rwi'IDmUll:notbe eithlrlOlrled,<q>ied«otl'lll'Wile NP'Odiacl
ln wtdea h P11rt orul8dfor •nr prupmewllhoul:.. prlor'Mltsl
parmlllllonot HRB.
......My_..,.,._.......ng ..... ..,.. .... _rn(llpMnt.y
.... ~ ... - ......... ~t~ YGnb6n cOo HRB.
PROJECTIDVAN: HANOI PILOTLIGHT METRO LINE Sedian Nhon-HantiRailwayS1atial
TIJY£N flOONG sATElOTHITHIfll~M TP HANQI Elatn N~n- Ga Hi NOi
Tm.E TtNBANVE: NHUE RIVER CROSSING
VU'QT SONG NHUI;:
DRAl'l1NGNO. BANV£SO:
CONST METHOD - 313
PHLIONG PHAP TI-II CONG - 313
PIC-TEC-GCM-WVO-J04-18013-B 3A
~,,;
~
I!!
~;;
ut
Iw .!:
F %
!I $i
!;l 8
~ uii: B
...-~1 -,,,
I 
I 
J_~_J__l_ _---"-_ ·____L
I
I
I
4600
SECTION A-A
MAT CATA-A0
SCALE: 1125
TYL!;' :1125
l
BLENDED EXCAVATION
£>Ao HON HQP
LEAN CONCRETE
B£TONG NGH£0
, _ _ _ , _ _J_J_
800 3000
4600
PLAN VIEW
MAT BANG
SCALE: 1125
19 1$ :1125
L--....l---L---------------4----..._---lf------I Q.IENT:
L--....l---L---------------4----..._---1,__----1 CHOflAuru:
3" 14111r11 Updatlld A.K
-1-,/ '/ '
/+' I ____L
---,-- I
 I
_ ~· /I
'- /
'~ -
800
2A 30KM/11
10 D1/11r10 HRB2nd •ubmll1lon oflllchnlcal daolgn A.K
UPDATED A. K
~81101C
18 2MIBl1D
L-~..J!::=.:::....J..;~~::=~::......------------+:~::..:: ~:..._--i::.:..:::::::.:...+.:..::.:=...-l HANOI METROPOLITAN RAIL TRANSPORT PROJECT BOARD
1A 31m1110
REVISION DATE
SLrAOOI Nal.Y
Flrot -. " ·K BAN 011AN allONG sA.TaO THI HA NQI
DESCRIPTION
NQI DUNGWAfJOI
IHIHl!BI'
HIM!
CllllClllBI'
IOI.!
-~
•PROJECT IMPLEMENTATIONCONSULTANT
Tl1 VAN THl,IC HleN DI,/ AN
SYSTRAS.A
PROJECTDIRECTORGIAMaocDI/AN:
Alain B~cheraau
FILE NAA1ElTtNBAN/£:
DESIGNED BYTHli;rK£:
A. K
CHECKED BYSlll.T:
G. Maur1s
CHIEF ~IGNERCll) NHleMTH1£r Ke:
P. Amaud
-
II I
I I
I I
I I
I I
I I
I I
I I
I I
I I
121251}1 ~
i
~~
;!
~§
ci:: :::>
w!!!
:!
0:: i5
iL
:NG
ROAD LEVE
CAO E>0fll!C'
--- ~
PILE CAP TOP LEVE
CA.O fl0 fllN~O COC
~ ·' 11~-~~ "
,._~
PILE CAP BOTTOM
CA.O E>O f>Ay MO COC
LEVEL
j---· ~ ·
EL
c
PILE TOE LEV
CA.O flO MOI CO
- - - .____y___
ELEVATION VIEW
MATE>llNG
SCALE: 1150
Till;: 1150
J:
~
zL1J
....I
L1J
...I
0::
N O T E S : - - - - - - - - - - - - - - - - - - - - - - - - - - ,
GHI CHL.f:
1. ALL DIMENSIONS ARE IN MILLIMETERS-LEVELS ARE IN METER
1.TAT cA cAc KICH THIJOcf)IJQ'C 00 BANG MM -cAc CA.O E>Of)IJQ'C T1NH BANG M
2. CONCRETE GRADE FOR PIER/PIERCAPIPILECAP: F'C=35 MPA (CYLINDRICAL)
2. cAP E>O eeTONG DONG CHO TRUIMO mu: PC= 35MPA (HINH TRU)
3. CONCRETE GRADE FOR PILES: F'C=30 MPA (CYLINDRICAL)
3. GAP E>O COA eeTONG CHO CQC: PC= 30MPA HINH TRl,J
SCALETYLE: STAlUS TfNH~G : PROJECT CVAN: HANOI PILOTLIGHT METRO LINE SediDn Nhon•HantiRailway S1atial
FORMATKHO BAN VE:
A1
Teclmical Design
DATENGAY:
31/01/10
Thil <Rwi'ID mUll:notbe eithlrlOlrled,<q>ied«otl'lll'Wile NP'Odiacl
ln wtdeah P11rtorul8dfor•nr prupmewllhoul:.. prlor'Mltsl
parmlllllonot HRB.
......My_..,.,._.......ng ..... ..,.. .... _m(llpMnt.y
.... ~ ... - .........~t~,,.,, ...... HRB.
TIJY£N flOONG sATElO THITHIfll~M 1l'HA NQI Batn N~n · GaHi NOi
Tm.ETtNBANVE: NHUE RIVER CROSSING
VU'QT SONG NHUI;:
SUBSTRUCTURES - P151-P154- CONC OUT
Kl:T cAu TANG DU'OI - P151-P154 - Kl:T cAu Bi: TONG
DRAl'l1NGNO.BANV£SO:
PIC-TEC-GDO-WVO-J04-18100-B 3A
~,,;
~ I!!
" ~;;
ut
Iw .!:
F %
!I $i
!;l 8
~ uii: B
3"
2A
10
1200 4250 4250
/ ....
/-r~
J?7!1)I
' /
...... ___,.,.,.
Lf__j_ I
 I
' /....... __. __,...,
If)
..._
-1-/ ....
/ 'I 
t--1-----t I
' /
...... ___ _ _,,,..,.
 LI ... L+ L' ".._,
'<-• • . <:,_·;. ·~•. ' '<:,
...._. 4. ·.• •
..~· ' Y. .. " ... ' d :,:
·,.. ~., -..- ~
. .: ., t~~~~ '·~
"I._. .... ·-·~·
3800
PLAN VIEW 2-2
MAT BANG 2-2
SCALE: 1125
rtu;:: 1125
A
14111r11 Updatlld A. K
30KM/11 2nd •ubmll1lon oflllchnlcal daolgn A. K
D1/11r10 UPDATED A.K
SECTION 1-1
~TcAT1-1
~:1J!!lll
....,...
1200
-1-/ ....
/ 'I 
t--j-----t I
' /' _,,..
-1-/ ....
/ 'I 
t--j-----t I
' /' _,,..
75
!I! EXCAVATION AND THEN BACKFIU.
'~~ ~~ =-N-
5000 1200
BLENDED EXCAVATION
er=. TONG NGHeo
7550
>-----fl!t++++++++++++t#lt - - - - - - - - - - --tHt+....+++++++++++<----<'..!-EANCONCRETE
e~roNGNGHOO- -
HRB
SECTION A-A
~TcATA-A
ICAl..I:: 1.<1!!11
....,...
•PROJECT IMPLEMENTATION CONSULTANT
Tl1 VAN THl,IC HleN DI,/ AN
SYSTRAS.A
FILE NAA1ElTtN e,1,1/£:
PIC-T'EC-GOO-WVO-JOl101-8_3.fl.IJIM;
DESIGNED BYTHli;rK£ :
A. K
1C ~8110
18 2MIBl1D
CHECKED BYSlll.T:
G. Maur1s
Updatad A . K
1--=---i;;;=-"--+-"u"'PD,t;=TED;....__ _ _ _ _ _ _ _ _ _ _ _"-,."".K"----==-.;.;..;;;=----1 HANOI METROPOLITAN RAIL TRANSPORT PROJECT BOARD
1A 31m1110
REVISION DATE
SLrAOOI Nal.Y
F1ro1 -. " ·K BAN 011AN allONG sA.TaO THI HANQI
DESCRIPTION
NQI DUNGsLrAfJOI
IHIHl!BI'
HIM!
CllllClllBI'
IOI.!
PROJECTDIRECTOR IGIAMaocDI/AN: CHIEF DESIGNERICll) NHleMTH1£r Ke:
Alain B~cheraau P. Amaud
TOP OF PIER LEVEL
CAO £>0 £l1NH TRU
~[ r-'V-~,...,j I.,,-! ~---'.--,-~---·-- ___.....________
I I
I I
I I
/ : :
CONSTRUCTION JOINT /
12125
~r-MOI NOi THI CONG I
SCALEITYI.Ii:
FORMATKHO BAN VE:
A1
11100
I
I
I
I
I
I!
2~0
PILE CAP BOTTOM LEVEL
CAO £>0 ElAY MO COC.....______ __
I
PILE TOE LEVEL
CAO £>0 MOI CQC
~~~~~---- ~ ---
SECTION B-B
M~TcA.T B-B
EAU:: 1Aill
rt it.:1•
NOTES:-~~~~~~~~~~~~~~~~~~~~~~~~
GHI CHL.f:
1. ALL DIMENSIONS ARE IN MILLIMETERS-LEVELS ARE IN METER
1.TAT cA cAc KICH THIJOc £ll1Q'C £lO BANG MM -cAc CAO ElO£ll1Q'C T1NH BANG M
2. CONCRETE GRADE FOR PIER/PIERCAPIPILECAP: F'C=35 MPA (CYLINDRICAL)
2. cAP £>0 B£ TONG DONG CHO TRUIMOTRU: PC= 35MPA (H]NH TRU)
3. CONCRETE GRADE FOR PILES: F'C=30 MPA (CYLINDRICAL)
3. cA.P ElO cOA er=.TONG CHO COC: PC= 30MPA HlNH TRU
STAlUS TfNH~G :
Teclmical Design
DAlEINGAY:
31/01/10
PROJECT OVAN: HANOI PILOTLIGHT METRO LINE SediDn Nhon•HantiRailway S1atial
TIJY£N el/ONG sAr ElOllilTHIfll~M 1l'HANQI Elatn N~n - Ga Hi NOi
Tm.ETtNB,l,IVE: NHUE RIVER CROSSING
VU'QT SONG NHUI;:
Thil <Rwi'ID mUll:notbe eithlrlOlrled,<q>ied«otl'lll'Wile NP'Odiacl
ln wtdeah P11rtorul8dfor•nr prupmewllhoul:.. prlor'Mltsl
parmlllllonot HRB.
SUBSTRUCTURES - P152-P153 - CONC OUT - 1 I 2
Ki:T cAu TANG DOOi - P152-P153 - Ki:T cAu Bl: TONG - 1 / 2
......My_..,.,._.......ng ..... ..,.. .... _rn(llpMnt.y
....~ ...- .........~t~'"""'""'""""·
DRAl'l1NGNO.IBANVESO:
PIC-TEC-GDO-WVO-J04-18101-B 3A
~
it7
!~
~11.
5251 5251
m 2218 523 587 1924 1924 587 523 2218 7~
I .------J______ I .------J______ I
Ill ---~ T 1- r T --- --
/l_..----- Ill -~
I I

I I I I
le 0
~
.q-

~
I
~ ~
t::
I
~
I (;i
-
I I I I
---~
-
-~+~ ---------------80
:El S?
~
in..,
"°0
~
4430 I 2~nn I
5430
(~
101'60
L-
c-- .
- - ___...- I____.
'l!;
n~ ~
i ~
! ti
~~
~ ',!!
n
* 50T JACKS REINFORCEMENT TO BE ADAPTED IF USING BIGGER JACKS
KICH 50T OOT TH.;:P CAN PHO HQ'P NEU SO' Dl,JNG cAC K[CH LON HON
545 4480
4 5251
523 2511
4 2218 523 587
3476
c
ELEVATION VIEW
MATDO'NG
1000
1924
SCALE: 1125
~lt:1/25
395 395
1000
21 00
3B"8
3848
PLAN VIEW A-A
MAT BANG A-A
SCALE: 1125
~16 :1125
2511
t----+----+--------------+----t--------t CLIENT:
1----+---+--------------+---1----+----1 CHOEIAUnr:
2A 3CW4/11 2nd aubmi11ion oflechnicaldllil9iun A. K
1D 01/1Ql10 Updatlld A. K HRB
1C 2Mllltl0 u 1lld A. K
18 ZW&"IO UPDATED A. K
l--"'---t="-='-+~=------------+="---F-"=-+~=--1 HANOI METROPOLITAN RAIL TRANSPORT PROJECT BOARD
1A 3UJ1110 Fim-.
REVISION DATE
SC/ADO! NGA.Y
A. K
DESCRIPTION DelllNEDl!Y
NQI DUNG SO'A DOI 111itl"K£
IH!llEDl!Y
1111.r
BAN DI/ANDUONG BAT DO lHI HAN(ll
4430
5430
4480
5251
523
587 I 523
JACK LOCATION
VI TR[KICH 
545
41
- ---- - - --- - --- - -f--

2218 41
3476
II
PROJECT IMPLEMENTATION CONSULTANT
TV VJN THVC Hl~N DIJ AN
ALENMIEITtN BAN'IE:
SYSTRAS.A
DESIGNED BYTll1£r~ :
A. K
PROJECT DIRECTORIGIANElOcD./AN :
Alain B'9chereau
FORIMTI~BAN v£ :
A1
1198 1198
700 498 308
SECTION B-B
MATCAT B-B
SCALE: 1125
~ 1e :1/25
3 12
1198
700 496
SECTION C-C
MATCAT C-C
SCALE: 1125
~I· :1125
NOTES : ~~~~~~~~~~~~~~~~~~~~~~~
GHICHU:
1. ALL DIMENSIONS ARE IN MILLIMETERS-LEVELS ARE IN METER
1.TAT cA cAC KICH THIJO'C DIJQ'C DO BANG MM -CAc CAO DO DIJQ'C '11NH BANG M
2. CONCRETE GRADE FOR PIER/PIERCAP/PILECAP: F'C=35 MPA (CYLINDRICAL)
2. cA.P DO BE TONG DONG CHO TRl,Jlt.10 lRl,J: FC= 35MPA(HINHTRl,J)
STATUSlT1NH T~ :
Technical Deeign
DATEINGAY:
31/01110
PRO.ECTIDI/AN : HANOI PILOTUGKT METROLINE Sadlon Nhon- Hrml RalwaySlllllan
ru~N WONG sAT00 THITHIDIEMTPHANQI Eo911 Nh&i-Ge H~ NOi
TITlfl~NBANv£ : NHUE RIVER CROSSING
WQ'T SONG NHUI;:
ORA'MNGNO.BANv£ SO :
PIER CAPS- P151 -CONC OUT
MO TRl,l - P151 - K~T cAU B~ TONG
PIC-TEC-GDO-WVO-J04-18250-B 2A
~
it7
!~
~0..
5251 5251
m 2218 523 587 1924 1924 587 523 2218 m
I ~1 ~ I
Ill
---'""- I ,J I I ---- -- /-- Ill ->-----
I I

I I I I
le 0
~
.q- :B
I
~ ~
t::
I 8
I N
-
I I I I
-~
~-
------------===+~ ---------------0
8
:El S?
~
II)
<'>
co
0
~
4430 I 2<:tJo I
5430
(~
101160
._.
---1--1...--'- -
'l!;
n
~ ~
i ~
! ti
~~
~ ',!!
n
141
4'
- c
ELEVATION VIEW
MATDO'NG
SCALE: 1125
191•:1/25
* SOT JACKS REINFORCEMENT TO BE ADAPTED IF USING BIGGER JACKS
KICH 50T COT TH~P cAN PHO HO'P NEU SO' 01,JNG cAc KICH LON HON
545 4460
5251
523 2511
2218 523 587
3476
395 395
1000 1000
H24 3al48
3848
PLAN VIEW A-A
MAT BA.NG A-A
SCALE: 1125
1919:1/25
2511
t----+---t----------------+----+-----t>------o CLIENT:
1--~-+-~~1--~~~~~~~~~~~~~-+-~~~+-~--11--~----1 CHOEIAUnr:
2A 3CW4/11 2nd aubmi11ion oflechnicaldllil9iun A. K
1D 01/1Ql10 Updatlld A. K HRB
1C 2Mllltl0 u 1lld A. K
18 ZW&"IO UPDATED A. K
1--"'---+"~"--+-=="--------------+-'-"'---F-'='--i~='--t HANOI METROPOLITAN RAIL TRANSPORT PROJECT BOARD
1A 3UJ1110 Fim-.
REVISION DATE
SC/ADO! NGA.Y
A. K
DESCRIPTION DelllNEDl!Y
NQI DUNG SO'A DOI 1111trK£
IH!llEDl!Y
1111.r
BAN DI/ANDUONG BAT DO THIHAN(ll
4430
5430
4460
5251
523
587 I 523
JACK LOCATION
VI TRIKICH I
2218
3476
545
141

141
II
PROJECT IMPLEMENTATION CONSULTANT
TV VJN THVC Hl~N DIJ AN
ALENMIEITtN BAN'IE:
SYSTRAS.A
DESIGNED BYTH1£r~ :
A. K
PROJECT DIRECTORIGIANElOcD./AN :
Alain B'9chereau
FORIMTI~BAN v£ :
A1
308
308
1198
700 498 308
SECTION B-B
MAT CAT B-B
SCALE: 1125
1919:1/25
3 12
2 6
1198
700 498 308
- ".'! -~ - -·.
·· ···.,·~~- ' ... !+===+====' : ..- • •+-----+---------<
~ •• - .. I+-- - --+------<
- -_.
.. - ~_..•:· . f 4
SECTION C-C
MATCAT C-C
SCALE: 1125
tY 19 :1125
NOTES : -----------------------~
GHICHU:
1. ALL DIMENSIONS ARE IN MILLIMETERS-LEVELS ARE IN METER
1.TAT cA. cA.C t<ICH TI-ilJO'C DIJQ'C DO BANG MM -CAc CAO DO DIJQ'C '11NH BANG M
2. CONCRETE GRADE FOR PIER/PIERCAP/PILECAP: F'C=35 MPA (CYLINDRICAL)
2. cAP DO BE TONG DONG CHO TRl,llMOlRl,I: FC= 35MPA(HINHTRl,I)
STATUS lT1NH T~:
Technical Deeign
DATEINGAY:
31/01110
PRO.ECTIDI/AN : HANOI PILOTUGKT METROLINE Sadlon Nhon- Hrml RalwaySlllllan
nJ~N WONG sAT00 THI THIDlt'.MTPHANQI Eo911 Nh&i-Ge H~ NOi
TITlflTENBANv£: NHUE RIVER CROSSING
WQ'T SONG NHUI;:
ORA'MNGNO.lBAN'IE SO :
PIER CAPS- P154 -CONC OUT
MO TRl,l - P1 54 - K~T cAU B~ TONG
PIC-TEC-GDO-WVO-J04-18252-B 2A
~
:ll
i
I
~
~ u7
~
~ sF ~
,,11
c !i §
~ Ii
... n
§II)
I
DETAIL 1
CHITle:T 1
1000
1000
I
2362
SLOPE 1%
d6c 1%
1289
5085
528
HALF SECTI0 N A-A._______.:==-------=..::==-------------J
NO'A MAT CAT A-A
SCALE: 1/20
TY L1~:1121l
1289
5085
532
I I
l
l

I

I
I
'
I
I
I
I
I


I
'
I
I
I
'I

880
I I


'1
I
I





I
I
I


I
I



'1
I
I
I
I

I
I
I
l
I

l

I
I
I
l
l
I l
1384
-+---+-------,---------1'--------+--.___, L-------,L--------,1
g
"'- r , , I
__j_~.L...lJ_ _.l_ ,__ _______ _.1_._ ________ _1t~~~T~NHIP
~
~- ._________.________....________._______._______u'",: OF PIER I EXP. JT.
· ~ · ~·-----;;-~--·-~·~·-~·-;;;--·-~·~·-~TRU/MOI NOi GiAN NO'
5085
VIEWC-C
GQC NHiN C-C
SCALE: 1/20
TY LE::1/20
t----+----+-------------_.____...__ __.____. CUENT:
t----+----+-------------_.____...__ __.____. CHOeAuTLI:
2A 30/D4/11
1C 25/D8110
HRB
1B 2lll08/10 UPDATED A. K . Amoud HANOI METROPOLITAN RAIL TRANSPORT PROJECT BOARD
1----+----+--FJ-.--,..-ue------------4-,,_-K---4----+-.Amoud---l BAN DI/ ANeirONo ~TeO THIHANQI1A. 31/01/10
REVISION DATE IUllllllBr aiEOOBr aEFIJ'DED
sil'AOO NClAY TIElll! SOI:! allN1$Hllll!
•PROJECT IMPLEMENTATION CONSULTANT
1Uv>H Tlil,IC HleN Dl,r AN
SYSTRAS.A
PROJECT DIRECTORIGW..!lOcDI/AN :
Alain ~ereau
3400
1780 1380
S1
S2
SECTION B-B
MAT CAT B-B STEEL OR CONCRETE CAP TO BE PROVIDED
Mii be tllng ho~c tht!p 4lfO'C cung cip wi b6 tr!
FILENAME~N BAN~ :
DESklNED BYITlllitr~ :
A.K
CHECKED BYIsoAT :
G. Maurls
SCALE: 1/20
TYLE::1/20 WITH CORRESPONDING FIXING ARRANGEMENT
liAn k6ttwng ung.
t
·-<'.1 2?20
4oETAIL-1
CHI TIET-1
I I
SCALE: 1/5
'TYLE::1/5
I I I I I I I I I I I I I
DETAIL-3
CHI Tl~T-3
SCALE : 1/10
TYLE: : 1/10
I I
KEYPLAN
MAT BANG CHiNH
i
STATJSH~H~G:
Technical Design
SCALE : 1/500
TYLE:: 1/500
NOTES:~------------------~
GHI CHJ:
1. ALL DIMENSIONS ARE IN MILLIMETERS.
1. TAT cA cAc KICH THU'OC ™EO DONII MM.
2. CONCRETE GRADE FOR DECK: F'C=45 MPA (CYLINDRICAL)
2. C/{p ae TONGDOI VO'I BAN MATcAU fC"-45 "41!!!!MAUlRU)
3. FOR GENERAL SEGMENi ARRANGEMENT REFER TO DWG. NO.
3. ae XEM BO ml PHAN D~ CHUNG XIN XEM BAN ve sO
PIC-TEC-GAD-WVO.J00-18007-B TO PIC-TEC-GAD-WVO.J00-18009-B
PROJECTDU'All: HANOI PILOTLIGHT METRO LINE Section Nhon·HanoiRailway Station
TIJY~N EllJCNGs.6.TDOTHI THIEll~M TP HANOi 9ofn Nh&i.Ge HiN(li
FORMAT KHO BAN~ : DATEINGAY:
31/01/10
nmlIDIBAN~ : NHUE RIVER CROSSING
VLJQT SONG NHUI;:A1
Thil dl8Wil"G ITllll: not be littw loaned. copilda-oetwwill repnxlUOld
h whal•or In pmrt cruMldfar•ny prupmewllhaul:tt.pfbrwrtllsl
permi.lond HRB.
DECK- SEGMENTS ES1-ES2 - CONC OUT- 1 / 2
BAN W,T cAU - PH.'.N OOAN ES1-ES2 - ~T cAU BIO TONG - 1/ 2
CHEFDESIG~ICHONHla,i !Hit! ~ : Un '6nlly llhllngdlrqc ph•p10 d,,.g duGI """ him Oll)c, rnOtpl'jn hoy
,... bO. mA llhllngdlrqc•• ding9l>il'G '*'blna.lo HRB.
DRAWINGNO.I BAN~SO:
P. Amaud PIC-TEC-GDO-WVO-J04-18300-B 2A
DETAIL 1
CHITl~T1
.,
SLOPE 1%
flO d6c 1%
... :.. .
.•· ..g
.4~ ··. ~ ~ ·
• '4.
B
SYMMETRY
t---50-B5~9~5~1---t-~-~8=80~---t~-~964~---i'~IX(rNG ~
----L · ~ .
B
5085
1224
A • of A "'""::::-----+1--...t- Cl
: ·~~ • .  .,. ___1_-+-lzS--~-----+...~J-1 -
1000 1289 452 I 2343
.q.;. · •.":· ~.· l .soci:. 1·.. ·• I Ci; ~
•_:4...4 .. . "' . .i -... ....~~--+--------+----------+---·------..............--......---+-'-l---~ --
1000 1289 452 I 1773 r11 500
0
0
~
HALF SECTION E-E
NO'A MAT CATE-E
... ..
.•q
•
SCALE: 1/20
TYL~:1/20
548
I
. .
~.· .
. ..
.•.
•• ......<q
. •.' . ~
..
...
·¥
. ..
q
·•
•
I
1503
B
·'-DECK AXIS
I TIM KeiT cAU NHIP
I
CAST-IN-SITU PLINT_H FOR ACCESS
Cf.WI COTDUC T>?-1 CHO CHO LOITllOP ~
OPENING COVER
N/PMO'
I ACCESS OPENING (1000x1000)
- ,__j__LO TIEP w:v" (1000x1DOD)
ILl:-1 -I---,
10 500
. ~ .~.
. .....
.. -.
q
:·
"'.,. ' ~. :•  ...............,...--+-.....--..-----.
.• q
•.
·- ~ ~. ... ""· .~ ~ ~·I ,"' .. .....•. ... I
., ~ . ·~. <f
• ~. • . I "Q'·
... . •"" .. . ~ . • 1"':
~ • q. • • j~·. ·: ..•~.. 1 · .- •. ... • .. I .. q ·
. "' ""' "' I .q . , ..
.. ~ . """'., " • I "
1--""""·--.·,., ·I , "'· ..
570
I
I
I
I
_ ]·~ J • I } J •, ... •·
~ '.... .
0
- . ,+--- 1----I·---· -·---·-~F PIER/ EXP. JOINT
4 OATRU I MOI NOi GiAN NO
1571;.... 441 413 548 1084
HALF SECTION D-D
NO'A MAT CAT D-D
SCALE: 1120
ti' u;::1120
HALF SECTION F-F
NO'A MAT CATF-F
SCALE: 1/20
ti' L~:1/20
B
I I I I I I I I I
''' 11 1111frr1 1 1 11 11 1~1
KEYPLAN 1trMAT BA.NG CHfNH
11 1' I1 1I 1..,f
SCALE : 1/500
TY LI;: 1/500
NOTES:--------------------~
GHI CHJ:
1. ALL DIMENSIONS ARE IN MILLIMETERS.
1. TAT cA cAc KICHTHU'OC ™EO DONVJ MM.
2. CONCRETE GRADE FOR DECK: F'C=45 MPA (CYLINDRICAL)
2. C/{p ae TONGDOI VO'I BAN MATcAU fC"45 "41!!!!MAUlRU)
3. FOR GENERAL SEGMENi ARRANGEMENT REFER TO DWG. NO.
3. ae XEM BO ml PHAN D~ CHUNG XIN XEM BAN ve sO
PIC-TEC-GAD-WVO.J00-18007-B TO PIC-TEC-GAD-WVO.J00-18009-B
~~-.-----.-~--.-~~~~~~~----.-~-----.~---.-~--.--~~~~~~~~~..--~~~~~~~~----.-~---:-,...--,,-~~..------.-~~-.-~...,....-~-===r==========================~tll t-----+---t-----------------+----+-----t>------i CLIENT: • PROJECTIMPl.EMENTATIONCONSULTANT FILENAME~NBAN~: SCALflITL~: STATJSH~H~G:
~ ~ CHO eAu Tll: 1Uv>H THl,IC HleN Dl,r AN PIC-m>GDC>WV<>JD4."'"'""'_2A.DWG - Technical Design
~ ~i 111
t-----+---t-----------------+----+-----t>------i • SYSTRAS.A DESklNEDBYT!llitr~ : FORllATKHOBAN~: DAlENGAY:
ij ~ HRB AK A1 31/01/1052 ~ .5 v. 3D1D4111 2nd MJbmllllDn Dftachnlcal dUgn A. K G. M•LN P. Amaud
~ ~ ~ 1C 25/D811D Updalod A. K G. M•<ft P. Amaud CHECl<EDBYSClAT :
8 !I ii 1B 2lll08/10 UPDATED A. K G. M•<ft " · Amaud HANOI METROPOLITAN RAIL TRANSPORT PROJECT BOARD G. Maurls
~!..
! ~l 1--,-A--1-3,-io-111_o_F1__.m_1..-ue------------+-A.-K---+-G-.. M-.---t-P.-Amaud----t BAN DI/ ANeirONo ~TeO THIHANQI
~ PROJECT DIRECTORIGW..!lOcOiiAN : CHEF DESIG~ICHONHla,i !Hit! ~ :
REVISION DATE DEllCRl'TION IUlllllllll' aiEOOl'f aEFIJ'DED
.. ~ -i sil'AflOI NClAY NOIDINJsUAOOI TIElll! SOl:r allN1$nElll! Alain ~ereau P. Arnaud
Thil dl8Wil"G ITllll: not be littw loll'llCI. copilda-oetwwill repnxlUCICI
h whal•or In pmrt cruMldfar•ny prupmewllhaul:tt.pfbrwrtllsl
permi.lond HRB.
Un '6nlly ldlllngdlrqc ph•p10 d,,.g duGI """ him Oll)c, rnOtpl"jn hoy
,... bO. mA ldlllngdlrqc•• ding9l>il'G '*'blna.loHRB.
PROJECTDU' All: HANOI PILOTLIGHT METRO LINE Section Nhon·HanoiRailway Station
TIJY~N EllJCNGs.&.r DOTHI THIDl~M w HANOi 9ofn Nh&i.Ge HiN(li
nmlIDIBAN~ : NHUE RIVER CROSSING
VLJQT SONG NHUI;:
DECK- SEGMENTS ES1-ES2- CONC OUT-2 / 2
BAN W,T cAU - PH.'.N OOAN ES1-ES2 - ~T cAU BIO TONG - 212
DRAWING ND.IBAN~so: IPIC-TEC-GDO-WVO-J04-18301-B 2A
B
548 1503
I
"' ~ L 4r-... _i_:...::J.-----L-,-----1_~ - <. I 500 <I· • 4 ,.
4
0
~-~---l-------+----------+--~~'--•'_• __~,__.,•_;..-~--~P___..._.-- ~L..__
1000 1289
I
452 I
HALF SECTION A-A
NliA MAT CAT A-A
SCALE: 1120
ti' Lf;::1/20
5085
2343
I
B
~.---------1------------------1------------ll
! ! I DECKAXm
r 1 r""~°'"""
I I
I I
I I
I I
I I
I I
I I
I I
I I
I I
I
I
~
~
_______.._________..____.________.________
~
1000 1289 532 I
VIEWC-C
GOC NHlN C-C
SCALE: 1/20
T'l'Li;::1/20
880 1384
I
S1
I ~
SA9'
SB9'
SB9
------....
' '' '''' 'I~
I
I
I ~ ~ I
I
I
2000
SECTION B-8
MAT CAT B-B
548
SCALE: 1/20
T'l'Li;::1120
I
1503
l~ ......---.--.-----------------lI
I
I
I
~DECKAXIS
r TIM ~T cAu NHIF..
l'""'l "'./ .., I
•.q
~ .....~·-_,____._____.___________
~ I 548 I 1503
HALF SECTION D-D
N(fA MAT CAT D-D
SCALE: 1120
T'l'LS:1/20
I
IIlip
15
r 1,,,,1,,! ! ! I I ! ,;! I I I I I I , , , -=- b , , , . . , . .
KE'lPLAN
MAT BANG CH[NH
SCALE : 1/500
ti' LI;:: 1/500
I
I
HT- S?I I
__ /d t I
~~ DETAIL-1
CHI TIET-1
SCALE : 115
T'l' Li;::1/5
NOTES:~------------------~
GHI CHU:
1. ALL DIMENSIONS ARE IN MILLIMETERS.
1. TAT cAcAc K[CH THllO'c THEOElONVI MM.
2. CONCRETE GRADE FOR DECK: F'C=45 MPA (CYLINDRICAL)
2. ~ e£; TONGEJ(SI Veil e.(N MAT cAUl'o=4I; lApe cMAUTRl,I)
3. FOR GENERAL SEGMENt ARRANGEMEfff REFER TO DWG. NO.
3. El~ XEM BO TRI Pli.&.N ElOAN CHUNG XIN XEM BANVE SO
PIC-TEC-GAD-WVO-J00-18007-B TO PIC-TEC-GAD-WVO-J00-18009-B
~ 1 o----+----+-------------_.____..._______. CLIENT: II PROJECTIMPLEMENTATIONOONSULTANT STATUSlT1NHT~: PRO.ECTl Dll AN : HANOIPILOTUGKTMETROLINE Sedlon Nhon-HrmlRalwaySlllllan
'I' ! CHO~•" n ~ TV V.'..' THVC Hl~N DIJ ,., Technical Deeign
..
~ l!; 1 - - - - + - - - - + - - - - - - - - - - - - - - - ' " - - - - - - - - i . - - - - - 1 """' 'Vo • "" ~ "" PIC-TEC<lllO-Wlt>.KJ4-l..,..,_:rADWe - ru~N Ell/ONG sATOO THITHIDlt:MTP HANOi Eoflll Nhfin-Ge H~ NOi
~~ SftTRASA
t ~ ~ HRB DESIGNEDBY TH1£r~ : FORIMTl~eANv£ : DATEINGAY: TITlfTtNBAN~ : NHUE RIVER CROSSING
ALENMIEITtN BAN~:
7 i!~ 2A 30oGll11 2nd•ubm1111onotlllchn1ca1d-.,, A.K 6 . Maurte 1>. Amaud A.K A1 31/01110 WQ'TSONGNHUI;:
~!ti ~~ ::~ ~::.~ ~~ :::~: :::::: HANOIMETROPOLITANRAILTRANSPORTPROJECTBOARD Cl£Cl<EDBYsoAT : "'~"-'II"""""'"_""_,,_,.,._ __, DECK-SEGMENTSS1-S3-CONCOUT
~ ~ ~ 1--
1
-A--+s-u-11-110--+-F-im--.------------.j..A.-K_ __._6_.. Ma-u-rie---i.P-.Amaud---l BANDl/ANflUONGsATflOTHIHAN(ll 1---G_._M_a_un_·s------1 =.::~~.,..-ror.,,,.p._w111oo.1111opt1or- BAN M.!<TcAU - PHANOO~S1-S3 - K~TcAUB~T0NG
...._~ ; ~ REVISION DATE DESCRIPTION DelllNEDl!Y IHlllEIJl!Y CllJEFOFDBD PROJECT01RECTOR1G1Ar.1rocD11AN: CH1EFoES1GNER1CHONH1eMTH1~~: ..,"'""'""""" "-"''pd•"'•"""'""'"'"'"""'~...,.., DRA'MNGNO.BAN~so : I~._~_~__w_~_D01_.__N_~_Y_.______~_1_~_NG_s_~_~_1_ _ _ ___.~™'-~E--~D-r _ _._00_1_11i11_11ET_E.._________________._A_la_in_B~_ch_e~_a_u___________.___P_._Am_a_ud_____.__....._~_. m_•""""_•_"-_••_o1no_'_...,_,.,_..,_,..._"_RB.___-'-----~P~l~C~-~T~E~C~-~G~D::....::0~-~'li/V.:....:.~0~-J.=..::0~4--1~8~3~0~2~-~B:..._.i....:2~A~
B
·:~~Z1
1503
"d::-~. 1_ 4;r-....___,:5...________....j -
~ . '548 · 1 0 • .4 • , 0
~-~---1-------+----------l---- 'l 4 g .:I <J J -· ~L _ _ _
1000
I 1000 I
1289 452 I
HALF SECTION A-A
NliA MAT CAT A-A
1289
SCALE: 1120
ti'Lf;:1/20
5085
I 532 I 880
VIEWC-C
GOC NHiN C-C
SCALE: 1!20
ITLl;:1120
2343
B
I 1384
I
I
I I~
I ~
1 -
1,,,,I I I I 11
SA9'
SA9'
SB9'
3000
SECTION B-B
MATCATB-B
SCALE: 1120
ti' LS:1/20
548
I I
1499
SAS'
SBB'
-...
I
I I I I I I I I I I I I I
I
KEYPLAN
MAT BANG CHfNH
SCALE : 1/500
rri...e: 11500
I
1: 1f 1
1 1
!!i i
I
I
-tr-~ I
I
;.Ji t I
~j_jj_ DETAIL-1
CHI Tli;T-1
SCALE: 115
ti' Ll;:1/5
- ~. : .·ri-~. -,:::::='===::i-----------li
..,
' .
' <
BOTTOM BLISTER TYPE 1
I
I
I
l_DECKAXIS
I TIM l<tT cAu NHll'
' - - " SEE DWG. NO. - PIC-TEC-GD WVO-J00-18330-S
........._' XEMBANvt SO- PIC-TEC-GDO-WV 00-18330-B
- ~BOTTOM BLISTER TYPE 1 ~·
~~·-·~.;_.....__..._1__...1,__ _ _ _ _ _ _--li
~ I 548 I 1503
HALF SECTION D-D I
NliA MAT CAT D-D
SCALE : 1!20
ti' Lf;:1/20
NOTES:-------------------~
GHI CHU:
1. ALL DIMENSIONS ARE IN MILLIMETERS.
1. TAT cAcAc K[CH THllO'c TliEO ElON VI MM.
2. CONCRETE GRADE FOR DECK: F'C=45 MPA (CYLINDRICAL)
2. ~ e£; TONG EJ(SI Veil e.(N MAT cA.ul'o=4I; lApe cMAUTRl,I)
3. FOR GENERAL SEGMENt ARRANGEMEfff REFER TO DWG. NO.
3. El~ XEM BO TRI PH.'.N ElOAN CHUNG XIN XEM BAN VE SO
PIC-TEC-GAD-WVO-J00-18007-B TO PIC-TEC-GAD-WVO-J00-18009--B
~
~ I II PROJECT IMPLEMENTATION CONSULTANT PRO.ECTI DI/ AN : HANOI PILOTUGKT METROLINE Sadlon Nhon - Hrml RalwaySlllllan
..
~ l!i , ruvJN THVCH1eN 011 AN •1c.TEC<lll0-Wlt>.KJ4-1111DM1_:r.o.owe - ru~N Ell/ONG s.J.Tao THITHI01t:MTP HANOi Eoflll Nh&i-Ge H~ NOi
5 ~ SftTRASA
t ~ ..: HRB DESIGNEDBY Tll1£r~ : FORIMTl~eANv£: DATEINGAY: TITlf~NeANv£ : NHUE RIVER CROSSING
ALENMIETtN BANv£: STATUSIT1NHT~:
Technicel Oeeign
7 i!~ 2A 3MJ.11'11 2nd•ubml11ionotlllchnlcald-.,, A.K 6 . Mauite P. Amaud A.K A1 31/01110 WQ'TSONGNHUI;:
~ ! ti t-~~~-t:~:~~;;.....;-=~~00aPDA=~=------------~~:::.;~'°'---F~'-"·::=~::::~:-'":::=::_-1 HANOIMETROPOLITANRAILTRANSPORTPROJECTBOARD Cl£Cl<EDBYsoAT: "'~0-'ll"""""""_""_,,_,.,._ __, DECK-SEGMENTSSA9'-SB9'-CONCOUT
~ i g "'"'' G Mauris ilwholeor inpartorUlldforanrp~wtto.tllwpricrlllrinln
~ ~ ~ 1A m11110 Fim 18aJo A. K p. Maurie P.Amaud BAN DI/ANDUONG BAT DO lHI HAN(ll 1------....------1 pormiuionofHRB. BAN M~T cA.U - PHAN ElO~ SA9'-SB9' - ~T cAU B~ TONG
-
~ I~ REVISION DATE DESCRIPTION DelllNEDl!Y IHlllEIJl!Y CllJEFOFDBD PROJECT01REC10R1G1Ar.1roc1X,1AN: CH1EFaES1GNER1CHONH1eMTH1£r~: ..,"'""'""'"""-"''•d""'""""'""'"'"'"""'~....,.... ORA'MNGN0.1BANv£SO: I~....._~_~__._w_~_D01_.__N_~_Y_.______~_1_~_NG_s_~_~_1______.~ra1_~E--~D-r _....L.00_1_11i11_11ET_E...__________________J_A_la_in_B~_ch_e~_a_u___________.i._~P~.~Am:..:.::a=ud:..._____.i._...,,_~_. m_•""'"_•_"-_••_o1no_t_...,_'*'_..,_,..._H_RB.___..L__ _ _ _~P~l~C~-~T~E~C~-~G~D~O~-~'li/V!.!~Q~-J!!!!0~4~-1~8~3~0~3~-~B~.L.;2~A~
B
-0 i ------+--+I~
L "' I
. , .
~ .----vi--~5~4~8~+--+-~1=099~----4~00=---I ~
!! I
1: 5Qd. I ' ,• ' •• I ~
~-~---t--------+---------+--~~~----.....;:•~4-·---------' ..;.....,..;;;i~ ~~
1000
§..,
1000
1289 457 I
HALF SECTION A-A
NO'A MAT CAT A-A
1289
SCALE: 1fLO
TI'Lt;::1/20
5085
I 532 I
VIEWC-C
GOC NHlN C-C
SCALE: 1/20
TI' Li;::1/20
880
2339
B
l..r-DECKAXIS
r TIM KB cAU NHIP
1384
I
~SA9'
SB9'
I ,_,,-
I ~
I I~
I ~
SAB'
SB8'
...
Vw/i I
SAS' I '' ''liu;LI
SA7'
SB7'
-...
I
I
I I I I I I I I I I I I I
KEYPLAN
MAT BANG CHiNH
SCALE : 1/500
Ti' LI;:: 1/500
~l l ! y!l l !!I I ~ IiiSB8'
I
I
Ht- ;!j I
_;j'[t t I
[. - ~ • • , • " ·;, . ·I. a· .•
4 q "l .4 <f A
• a
' .. I
~Jj)_ DETAIL -1
CHI TIET-1
I
'""""
SECTION B-B
MAT CAT B-B
548
SCALE: 1/20
Ti' Ll;::1/20
I I
1485
1
'
I
I
I
SEE DWG. NO. - PIC-T C-GDO-WVO-J00-18335-B
XEM BANvesO-PIC-TE DO-WVO-J00-1833&a
SCALE: 1/5
Ti' Ll~:1/5
/
DEVIATOR TYPE 1 dU CHUYE:N Hl/ONG LOAI 1
'.."'i----+---------1+---------.1J
~-- ---·--- ll ~~~~~·' . .
4 • •
~ I 548 I 1499
HALF SECTION D-D
NO'A MAT CAT D-D
SCALE : 1/20
Ti'Li;::l/20
I
i
I
l
NOTES:~------------------~
GHI CHU:
1. ALL DIMENSIONS ARE IN MILLIMETERS.
1. TAT cAcAc K[CH THllO"c THEO ElONVI MM.
2. CONCRETE GRADE FOR DECK: F'C=45 MPA (CYLINDRICAL)
2. ~ ee TONGEJ(SI Veil e.(N MAT cAUl'o=4I; l,1pe CMAUTRUl
3. FOR GENERAL SEGMENt ARRANGEMEfff REFER TO DWG. NO.
3. eeXEM BO TRI PHAN ElOAN CHUNG XIN XEM BANve so
PIC-TEC-GAD-WVO-J00-18007-B TO PIC-TEC-GAD-WVO-J00-18009--B
~
0
~ t----+----+-------------_.____..._______. CLIENT: II PROJECTIMPLEMENTATIONOONSULTANT PRO.ECTIDI/~ : HANOIPILOTUGKTMETROLINE Sedlon Nhon-HrmlRalwaySlllllan
~ _ 1----+----+-------------.....---1-------i.----1 cHO aAu nr: , ru vJN rHvc Hr~N 011AN ••c.TEC<lll<).Wllt>.KJ4.1..,..,_:r.o.owe - ru~N Ell/ONG s.J.roo THI THI01t:MTP HANOi Eoflll Nhfin-Ge H~NOi
~ n HRB SYSTRA s.A DESIGNEDBYTll1£r~: FORIMTl~eANv£: DATEINGAY: TITlfTtNBANv£: NHUE RIVER CROSSING
ALENMIEITtN BANv£: STATUSIT1NH T~:
Technicel Deeign
7 i!~ 2A 3MJ.1/'11 2nd•ubm1111onotlllchn1ca1d-.,, A.K 6 . Mauite 1>. Amaud A.K A1 31/01/10 WQ'TSONGNHUI;:
~ !ti ~~ ::~ ~::.~ ~~ :::~: :::::: HANOIMETROPOLITANRAILTRANSPORTPROJECTBOARD Cl£Cl<EDBYlsoAT : "'~•-'II"""""""_""_,·_,,.._ __, DECK-SEGMENTSSA8'-SB8'-CONCOUT
~ ~ ~ 1--1-A--+s-u-11-110--+-F-im--.-------------1--A.-K___._6_.. Ma-u-rie---i.P-.Amaud---l BANDl/ANflUONGsATDOlHIHAN(ll ..__G_._M_a_un_·s-----1 =.::~~,...-ror.,,,.p._w111oo.1111opt1or- BAN M~TcA.U - Pl-IANElO~SA8'-SB8' - ~TcAUB~T0NG
..._~ ; ~ REVISION DATE DESCRIPTION DelllNEDl!Y IHlllEIJl!Y CllJEFOFDBD PROJECT01REC10R1GIAMrocD11AN : CHIEFDES1GNERCHO NH1eMTH1~~: ..,"'""'""""" "-"''~"~""'""'"'"'"""'~....,..., DRA'MNGNO.ieANv£SO: I~._~_~__._w_~_D01_.__N_~_Y_.__ _ _ _ _~_1_~_NG_s_~_~_1_ _ _ ___.~ra1_~E--~D_r _ _._00_1_11i11_11ET_E.._________________._A_la_in_B~_ch_e~_a_u___________.___P_._Am_a_ud_____.__....._~_.m_•""""_•_"-_••_~_~'--_~'*'_..,_,..._"_RB.___-'-----~p~l~C~-~T~E~C~-~G~D::....::O~-~'li/V.:....:.~Q~-J.=..::0~4--1~8~3~04::....:..-~B:..._.i....:2~A~
B
I ~ ~
: •' 1o.--=548~--"'--1---'-----'-148=5_ _ ___J
• ~ . I.'._ - ...
1
_ ......~-------_J
~ < 1 5cio_·a •1 .' • ' o" 4 ,,
4
;,- .l 4 <I ~
~~~---1~~~~~~--+-~~~~~~~~-l---~~--~-~~--"---~--"'--~~~-1-~
1000 1289
I
470 I
HALF SECTION A-A
NO'A MAT CAT A-A
SCALE: 1120
Ti' Ll;::1/20
5085
2325
B
~.-~~~~~---,-~~~~~~~~-.-~~-~~~~~---,-~~~~~~~~----!
I
I
Ir- DECKAXIS
r TIMK8° cAu NHIP
I I I
I I
I I
I I
I I
I I
I I
I I
I I
I I
I I
I I
I I
I I
I I
I I
~L-~~~~~-'-~~~~~~~~....L....~~_J~~~~~-'-~~~~~~~~---1
I 1000 I 1289 I 532 I
VIEWC-C
G6C NHlN C-C
SCALE: 1/20
Ti' Lt;:1120
880 I 1384
Pt/J I
SA7'
,,,,,fir,,I I I I I I I I I I I I I
KEYPLAN
MAT BANG CHiNH
,, ,, ,,,, ,,Htd I
SB7'
~SAS'
SB8'
I ,,--------
I ~
1 ~~
I ~
I lfz!
I ~ .4
<I" _<.J
4 ' 4 •
SA7'
SB7'
3000
4
SECTION B-B
MAT CAT B-B
SCALE: 1120
Ti'Ll;::1/20
' 548 1463
I I I
~ ......~ -.,......,., ~"""T'""~~~..-~~~~~~~~---11
4
.,
4
4 . '
< 4
I
I
I
I
SA6'
SCALE : 1/500
Ti' LI;:: 1/500
S86'
~ I
l
I
' 0
~
I 1
I
I
Ht- ~· I
!d ' I
~-ill- DETAIL -1
CHI Tl~T-1
SCALE: 1/5
Ti' Li;:1/5
<
'
l_DECKAXIS
I TIM K8° cAu NHIP
~..._.·-~-·....__._~~--1...~~~~~~~~~~I
I~ I 548 I 1485
HALF SECTION D-D
NO'A MAT CAT D-D
SCALE: 1120
Ti'Ll;:1120
NOTES:~~~~~~~~~~~~~~~~~~~~
GHI CHU:
1. ALL DIMENSIONS ARE IN MILLIMETERS.
1. TAT cAcAc K[CH THllO'c THEOElONVI MM.
2. CONCRETE GRADE FOR DECK: F'C=45 MPA (CYLINDRICAL)
2. ~ e£; TONG EJ(SI Veil e.(N MAT cAUl'o=4I; l,1pe cMAUTRl,I)
3. FOR GENERAL SEGMENt ARRANGEMEfff REFER TO DWG. NO.
3. £)£; XEM BO TRI PHAN ElOAN CHUNG XIN XEM BAN VE SO
PIC-TEC-GAD-WVO-J00-18007-B TO PIC-TEC-GAD-WVO-J00-1800S-B
ALENMIEITtNBAN'IE: STATUSlT1NH T~:
Technicel Deeign
~
~ I II PROJECT IMPLEMENTATION CONSULTANT PRO.ECTIDI/ ~ : HANOI PILOTUGKT METROLINE Sadlon Nhon- Hrml RalwaySlllllan
..
~ l!i , ruvJN THVCHtt;N 011AN ••c.TEC<lll<).WYG.KJ4.1lllD<l_:r.o.owe - ru~N Ell/ONG s.J.TaoTHI THI01t:MTPHANOi Eoflll Nhfin. Ge H~ NOi
5 ~ SftTRASA
t ~ ..: HRB DESIGNEDBY Tll1£r~ : FORIMTl~eANv£ : DATEINGAY: TITlfTtNBANv£: NHUE RIVER CROSSING
7 i!~ 2A 3MJ.11'11 2nd•ubml11ionotlllchnlcald-.,, A.K 6 . Maurte P. Amaud A.K A1 31/01110 WQ'TSONGNHUI;:
~ ! ti t-~~~-t:~:~~;;....;-=~~00aPDA=~=-------------~~:::.;~'°'----F~'-"·::=~::::~:-'":::=::_-1 HANOIMETROPOLITANRAILTRANSPORTPROJECTBOARD Cl£Cl<EDBYsoAT : "'~"-'II"""""'"_""_,,_,.,._ __, DECK-SEGMENTSSA7'-SB7'-CONCOUT
~ i g "'"'' G Mauris ilwholeor in partorUlldforanrp~wtto.tllwpricrlllrinln
~ ~ ~ 1A m11110 Fim 18aJo A. K p, Maurie P.Amaud BAN DI/ANDUONG BATDOlHIHAN(ll 1---·--..,..---..,.......,...--1 pormiuionofHRB. BAN M~T cA.U - PHAN ElO~ SAT-SBT - ~T cAU B~ TONG
-
~ I~ REVISION DATE DESCRIPTION DelllNEDl!Y IHlllEIJl!Y CllJEFOFDBD PROJECT01REC10R1GiAr.lrocD11AN : CHIEFDES1GNER1CHO NH1eMTH1~~= ..,"'""'""""""-""'•d""'""""'""'"'"'"""'~....,..., DRA'MNGN0.1BAN~SO : I~._~_~__._w_~_DOl_.__N_~_Y_.______~_1_~_NG_s_~_~_1______.~ra1_~E--~D-r _...J....00_1_llill_nEl_E_._________________J_A_la_in_B~_ch_e~_a_u___________i__~P~.~Am::.::a=ud:...._____i__...,,_~_. m_•""""_•_"-_••_o1no_t_...,_'*'_..,_,..._H_RB.___.L_____~P~l~C~-~T~E~C~-~G~D~O~-~'li/V!.!~Q~-J!!!!0~4~-1~8~3~0~5~-~B~l_;2~A~
.'
548
l
B
1463
1.c.·· . ·-~r_ _..olt)'!.--------~ -
'11 ~- soo-~ -~- 4 4 ~ -~ - ~
~~~----<~~~~~~--+-~~~~~~~~-+-~~----------"-4 -·___'~·--" ---<-~
1000 1269 493 I 2303
HALF SECTION A-A
NO'A MAT CATA-A
SCALE: 1/20
ITLS:1/20
5085
B
~.----------,----------.--------.-------,------------4
I
I
l~DECKAXIS
r TIM K8° cAU NHIP
~'----------'"---------'-------'~-------'---------~
I 1000 I 1269 I 532 I 860
VIEWC-C
GOC NHlN C-C
SCALE: 1/20
ITLl;::1/20
1384
I
I
I
I
i5
SB7'
,,,,,,------
..'
.'
I MM I I II 1"?:i:;;o:1
SA6' " '
SA6'
SB6'
SA5'
SB5'
I I I I I I I I I I I I I
KEYPLAN
MAT BANG cHrNH
SCALE : 1/500
IT LI;: 1/500
111f 1;1 I @ I I
SB6'
--------.... I
" .
3000
SECTION B-B
MAT CAT B-B
546
SCALE: 1/20
IT Lf;:l/20
1447
I
I
I
I
I
Ht-~ I
;_Lk 1 I
~jjj_ DETAIL-1
CHI Tli;T-1
SCALE: 1/5
TY Ll;::1/5
ii I i
~ .......,-....,..---r----r------------4
'
"
..'
:.. . 4.
.,
.
4 ..
'
•4
'.'
~DECKAXIS
I TIM K8° cAu NHIP
~...____,~-'-----'---------~
~ I 548 I 1463
HALF SECTION D-D
NO'A MAT CAT D-D
SCALE : 1/20
ITLS:l/20
l
NOTES:~~~~~~~~~~~~~~~~~~~~
GHI CHU:
1.ALL DIMENSIONS ARE IN MILLIMETERS.
1. TAT cAcAc K[CH THllO'c THEO ElON VI MM.
2. CONCRETE GRADE FOR DECK: F'C=45 MPA (CYLINDRICAL)
2. ~ e£; TONGEl(SI Veil e.(N MAT cAU l'o=4S lApe CMAU TRl,I)
3. FOR GENERAL SEGMENt ARRANGEMEfff REFER TO DWG. NO.
3. El~ XEM BO TRI PHAN ElOAN CHUNG XIN XEM BAN~ SO
PIC-TEC-GAD-WVO-J00-16007-B TO PIC-TEC-GAD-WVO-J00-1800S-B
ALENMIEITtN BAN'IE:~ I t----+----+-------------_.____..._______. CLIENT: II PROJECTIMPLEMENTATIONOONSULTANT PRO.ECT Dlf~ : HANOIPILOTUGKTMETROLINE SedlonNhon-HrmlRalwaySlllllan
..
~ l!i 1----+----+---------------'"---i------i.-----1 cHO aAu nr: , ru vJN rHvcH1e:N 011AN ••e-TEC<lllO-Wlt>.KJ4-1....,_:rAowe - ru~N Ell/ONG s.J.roo THITHI01t:MTPHANOi Eoflll Nhfin-Ge H~NOi
~ ~ SftTRASA
t ~ ~ HRB DESIGNEDBY Tll1£r~ : FORIMTl~eANv£: DATEINGAY: TITlfTtNBANv£: NHUE RIVER CROSSING
STATUSlT1NHT~:
Technicel Deeign
7 i!~ 2A 3MJ.11'11 2nd•ubm1111onotlllchn1ca1d-.,, A.K 6.Mauite 1>.Amaud A.K A1 31/01110 WQ'TSONGNHUI;:
~ !ti ~~ ::~ ~::.~ ~~ :::~: :::::: HANOIMETROPOLITANRAILTRANSPORTPROJECTBOARD Cl£Cl<EDBYsoAT: "'~"-'II"""""'"_""_,,_,,.._ __, DECK-SEGMENTSSA6'-SB6'-CONCOUT
~ ~ ~ 1--1-A--+s-u-11-110--+-F-im--.------------.j..A.-K___._6_.. Ma-u-rie---i.P-.Amaud---l BANDl/ANflUONGsATflOlHIHAN(ll 1---G_._M_a_un_·s------1 =.::~~or.-roranyp,_-...111opt1or- BAN M~TcA.U - Pl-IANElO~SA6'-SB6' - ~TcAUB~T0NG
,__~ ; ~ REVISION DATE DESCRIPTION DelllNEDl!Y IHlllEIJl!Y CllJEFOFDBD PROJECT01REC10R1G1Ar.1rocD11AN: CH1EFoES1GNER1CHONH1eMTH1~~: ....... ..- • ._pti.pd•"'•"""'""'"'"''"'"·~....,.... DRAWINGNO.BAN~so: I~.__~_~__w_~_D01_.__N_~_Y_.______~_1_~_NG_s_~_~_1______.~™1_~E--~D-r _ _._00_1_11i11_11ET_E.._________________._A_la_in_B~_ch_e~_a_u___________.___P_._Am_a_ud_____.__...,,_~_. m_•""'"_•_"-_••_o1no_t_...,_'*'_..,_,.._"_RB.___-'-----~p~l~C~-~T~E~C~-~G~D::....::O~-~'li/V.:....:.~Q~-J.=..::0~4--1~8~3~0~6~-~B:..._.i....:2~A~
B
,i.' .4 .<l ~--~-~--1-
~ ~ L ~ ......,..._....,..,1---.- -.--.- -,_.. -
. tl; . j~oo ~ J ,. 4. " o
4 4 '6 "' 4 il ~
~-~---+--------+----------'----~---------.......----......-~-~
1000
I
1289 565 I 2231
HALF SECTION A-A
NO'A MAT CAT A-A
SCALE :1~
ri' LE:1/20
5065
B
- ....------------------------------------!II
I
I
I
I
I
I
I
I
I
I
I
I
I
I
I
I
I
I
I
I
I
I
I
I
I
I
I
I
I
I
I
I
l...r-DECKAXIS
r TIM K£T cAu NHIP
~'---------'--------....L...---'--------'----------'
I 1000 I 1289 I 532 I
VIEWC-C
GOC NHlN C-C
SCALE :1~
TYLl;::1f20
680 I 1364
I
f.,,,WY4 I
SA5'
~ ~· i1~SB6 SB5 SB4
SB6' SB5' SB4'
I ,,,,----- ------.,._ I
L:,1---1--~ ._...;·:...J__•__"J__._...;;:..,_'__-·_·_._._-·_,_._,_·_._4-1---~·-~
I ~ ~ I
1~m ~§~ I
lr--+.,:a~-_...,~-::,-------~---- - --~'--'rt--l---,,..,-..--l----ll
3000
SECTION B-B
MAT CAT B-B
546
SCALE: 1120
ri' Ll~:1f20
1422
I I I
-.--~ ~.......~-.--I~~~~~~~~~-----,
I
'. /;
I L __ _,
I
I
I
I
I
I
I
I
I I
J!?.(1 I I I I I I I I %1 I I I IS? [ I I
SA5 KEYPLA~85
11r
I 1&£4 I
SB5'
MAT BANG CH[NH
SCALE : 11500
ri' LE: 11500
I
I
j
Ht- ~· r;Lllt t I
~J.jj_ DETAIL-1
CHI Tli;T-1
SCALE: 115
Ti' Li1::115
I
I
I
I
I
I
I
I
I
I
I
~DECKAXIS
I TIM K£T cAu NHIP
~ ~BOTTOM BLISTER TYPE 3
BOTTOM BLISTER TYPE 3 ~
SEE DWG. NO. - PIC-TEC-GD -WVO.J00-16330-B
XEM EWlvEsO- PIC-TEC-GDO- °'-ICJ0.1833G-B
l I
~~I_4_2_0....._1~..__,-54-a~~,~~~~14-41~~~---"1
HALF SECTION D-D
NO'A MAT CAT D-D
SCALE: 1120
Ti'Ll;::1/20 NOTES:--------------------
GHI CHU:
1. ALL DIMENSIONS ARE IN MILLIMETERS.
1. TAT cAcAc K[CH THllO'c THEO ElON VI MM.
2. CONCRETE GRADE FOR DECK: F'C=45 MPA (CYLINDRICAL)
2. ~ B£; TONGEl(SI Veil B.(N MAT cAUl'o=4S lApe CMAUTRVl
3. FOR GENERAL SEGMENt ARRANGEMEfff REFER TO DWG. NO.
3. Ele:XEM BO TRI PHAN ElOAN CHUNG XIN XEM BAN ye: SO
PIC-TEC-GAD-WVO-J00-16007-B TO PIC-TEC.GAD-WVO.JIJ0.1600S.B
~ I t----+----+-------------_.____..._______. CLIENT: II PROJECTIMPLEMENTATIONOONSULTANT PRO.ECTI DI/ ~ : HANOIPILOTUGKT METROLINE Sedlon Nhon-HrmlRalwaySlllllan
..
~ ~ 1 - - - - + - - - - + - - - - - - - - - - - - - - - ' " - - - 1 - - - - - - 1 - - - - - - 1 CHO ewmr: , TV vAN THVCHreN 011 AN •1c.TEC<lll0-Wllt>.KJ4.1......_'"'""" - ru~N Ell/ONG s.J.TaoTHITHIDlt:MTP HANOi Eofln Nhfin. Ge H~NOi
~ ~ SftTRASA
t ~ ~ HRB DESIGNED BYTll1£r~ : FORIMTl~eANv£ : DATEI NGAY: TITlfTtNBANv£: NHUE RIVER CROSSING
ALENMIEITtN BANv£: STATUS lT1NHT~:
Technicel Deeign
7 i!~ 2A 30oGll11 2nd•ubm1111onotlllchn1ca1d-.,, A.K 6 . Maurte 1>. Amaud A.K A1 31(01110 WQ'TSONGNHUI;:
~!ti ~~ ::~ ~::.~ ~~ :::~: :::::: HANOIMETROPOLITANRAILTRANSPORTPROJECTBOARD Cl£Cl<EDBYlsoAT : "'~"-'II"""""""_""_,,_,.,._ __, DECK-SEGMENTSSA5'-5A5-SB5-SB5'-CONCOUT
~ ~ ~ 1--1-A--+s-u-11-110--+-F-im-,_,.------------.j..A.-K_ __.,_6_.. Ma-u-rie---1-P-.Amaud---l BANDl/ANflUONGsATDOlHIHAN(ll ..__G_._M_a_un_·s-----1 =.::~~.,..-roranrp,_-...111opt1or- BAN ~Tc:AU - PHANDO~SA5'-sAS-SBS-SB5' - K~TcAU B~ TONG
..._~ ; ~ REVISION DATE DESCRIPTION DelllNEDl!Y IHlllEIJl!Y CllJEFOFDBD PROJECT 01RECTOR1G1Aro1Eioc1X,1AN : CH1EFoES1GNER1CHO NH1eMTH1£r~: ....... ........ ._,.,.pd•"'•"""'""'"'"'"""'~...,.., DRAWINGNO.iBANv£SO : I~...._~_~__w_~_D01_.__N_~_Y_.______~_1_~_NG_s_~_~_1_ _ _ ___.~™1_~E--~D-r_ _._00_1_11i11_11ET_E.._________________._A_la_in_B~_ch_e~_a_u___________.___P_._Am_a_ud_____.__...,,_~_. m_•""'"_•_"-_••_o1no_t_...,_'*'_..,_,..._"_RB.___-'------~p~l~C~-~T~E~C~-~G~D::....::O~-~'li/V.:....:.~Q~-J.=..::0~4--1~8~3~0~7~-~B:..._.i.....:2~A~
1000
I
B
tSYMMETRY
..._~~=85=2~--~~880~~~<--~~~1~3=84~~~~~1XONG ~
1259 s1s I 2151
HALF SECTION A-A
NUA MAT CAT A-A
SCALE: 1/20
ITLl;::1/20
5085
B
~.---------.---------....------,--------.-------------1
I
I I
I
I
I
I
~DECKAXIS
I TIM ~T cAu NHIP
~
,
_
_
_______.._________,____,________..___________,
I 1000 I 1289 I 532 I
VIEWC-C
GCC NHiN C-C
SCALE: 1/20
Ti'Ll1.:1/20
880 I 1384
I
I
I I I I sfj. I I iffrrrmI I~~~~,~~ .:. I
MAT BANG CHiNH
1
15
' ~l l l fJ!!p,j !
. . SB4'
SCALE : 1/500
SAS'
SA5
SB5
SB5'
SA4'
SA4
SB4
SB4'
SA3' Ti' LI;:: 1/500
,,,-------
3000
SECTION B-B
MAT CAT B-B
548
SCALE: 1/20
Ti' Li;:1/2D
1388
I
SA3
SB3
SB3'
---....., I
l
1
~)
I I I~ -...--......----,...-----.------------1
,. I I
.'
/'
I L _ _J
I
I I
: r DEVIATOR TYPE 2 ~1 UCH~N HllGNG LOAI 2
1 SEE DWG. NO. - PIC-T C-ODO-WVO-J00-18332-B
I XEM eAN VE SO- PIC-TE GDO-WVO-J00-18332-B
__U___:1_____JJ__I _
I I I
• I I I
,,• III I ~
.. '
1---+-~I----+----------'
I 00
I
I DECK AXIS
: TIM K8° cAu NHIP
I -
I BOTTOM BLISTER TYPE 4 ~
I BOTTOM BLISTER TYPE 4
SEE DWG. NO. - PIC-TEC-OD -WVO-J00-18332-B
XEM BAN V~ 50 - PIC-TEG-000- . 0-J00-18332-6
t--~~~ I
~~ ....I -4""'"20-'--'1--:1==548===::1=======14:22:======:1
HALF SECTION D-D
NUA MAT CAT D-D
SCALE: 1/20
TY Ll;:1/20
I
I
j
Hi-~ !;__dt t I
~Jl_ DETAIL -1
CHI Tl~T-1
SCALE: 115
IT Ll;:1/5
NOTES:~~~~~~~~~~~~~~~~~~~~
GHI CHU:
1. ALL DIMENSIONS ARE IN MILLIMETERS.
1. TAT cAcAc K[CH THllO'c THEO ElON VI MM.
2. CONCRETE GRADE FOR DECK: F'C=45 MPA (CYLINDRICAL)
2. ~ e£; TONG EJ(SI Veil e.(N MAT cA.ul'o=4I; l,1pe cMAUTRl,I)
3. FOR GENERAL SEGMENt ARRANGEMEfff REFER TO DWG. NO.
3. El~ XEM BO TRI PHAN ElOAN CHUNG XIN XEM BAN VE SO
PIC-TEC-GAD-WVO-J00-18007-B TO PIC-TEC-GAD-WVO-J00-18009-B
~ I t----+----+-------------_.____..._______. CLIENT: II PROJECTIMPLEMENTATIONOONSULTANT PRO.ECT Dlf~ : HANOIPILOTUGKTMETROLINE SedlonNhon-HrmlRalwaySlllllan
..
~ l!i 1 - - - - + - - - - + - - - - - - - - - - - - - - - ' " - - - i - - - - - - i . - - - - - 1 cHO aAu nr: , ru vJN rHvc Hl~N 011 AN ••c.TEC<lll().Wllt>.KJ4-1lllDMl_:r.o.owe - ru~N Ell/ONG s.J.roo THITHI01t:M TP HANOi Eoflll Nhfin - Ge H~NOi
~~ SftTRASA
t ~ ~ HRB DESIGNEDBY Tll1£r~ : FORIMTl~eANv£ : DATEINGAY: TITlf~NeANv£ : NHUE RIVER CROSSING
ALENMIETtN BAN~: STATUSIT1NH T~:
Technical Deeign
7 i!~ 2A 3MJ.11'11 2nd•ubm1111onotlllchn1ca1d-.,, A.K 6 . Mauite 1>. Amaud A.K A1 31/01110 WQ'TSONGNHUI;:
~!ti ~~ ::~ ~::.~ ~~ :::~: :::::: HANOIMETROPOLITANRAILTRANSPORTPROJECTBOARD Cl£Cl<EDBYsoAT : "'~"-'II"""""'"_""_,,_,,.._ __, DECK-SEGMENTSSA4'-5A4-SB4-SB4'-CONCOUT
~ ~ ~ 1--1-A--+s-u-11-110--+-F-im--.------------.j..A.-K_ __._6_.. Ma-u-rie---i.P-.Amaud---l BANDl/ANflUONGsATDOlHIHAN(ll 1---G_._M_a_un_·s------1 =.::~~,...-roranrp,_-...111opt1or- BAN~Tc:AU - Pl-IANDO~SM'-5A4-SB4-SB4' - K~TcAU B~ T0NG
...._~ ; ~ REVISION DATE DESCRIPTION DelllNEDl!Y IHlllEIJl!Y CllJEFOFDBD PROJECT01RECTOR1G1Ar.1roc1X,1AN: CH1EFoES1GNER1CHONH1eMTH1~~: ....... ....... ._""•pd•"'•"""'""'"'"'"""'~...,.., DRA'MNGNO.ieAN~so : I~._~_~__._w_~_DOl_.__N_~_Y_.______~_1_~_NG_s_~_~_1______.._.™1_~E--~D-r _ _._00_1_11i11_11ET_E.._________________._A_la_in_B~_ch_e~_a_u___________.___P_._Am_a_ud_____.__...,,_~_. m_•""'"_•_"-_••_o1no_t_...,_'*'_..,_,..._"_RB.___-'-----~p~l~C~-~T~E~C~-~G~D::..::O~-~'li/V.:..:.~Q~-J.=..::0~4--1~8~3~0~8~-~B:_..L...:2~A~
1000
1000
.;
-4
, - ~
548
''...r--'-d 4
-.,d'·'..~-
1299 e1a I
1289
HALF SECTION A-A
NO'A MAT CAT A-A
SCALE: 1/20
TYLE:1/20
5085
639 9ao
2122
e
1240
B
1226
~ ..-~~~~~__,.~~~~~~~~-.-~~~~~~~~~--~~~~~~~--I
I
I
I
I
I
I
I
I
I
I
I
I
I
I
I
I
I
I
I
I
l
I
I
I
I
I
I
I
I
l
I
I
I
I
I
I
I
I
I
I
I
~DECKAXIS
I TIM ~TcAIJ NI
~._~~~~~........~~~~~~~~_,_~~--'~~~~~---"~~~~~~~~--+
VIEWC-C
GOC NHlN C-C
SCALE: 1/20
Ti'LE:1/20
§..,
paj
SA3'
t"""'
~· ~ )i~SB4 sea se2
se4• sea· se2·
I , - --------.._ I
I ~ . "' • 4, • • ··_. , • • • 4 • ~
,---~l!---t--~~~~~.......~~~~~~·~'-- ~~·.........;.....~----4+--~-l(l;j ..,
I~
I
527 548
aooo
SECTION 8-8
MAT CAT B-B
SCALE: 1/20
TY Ll;:1/20
1240
I I I
~ -.~~~~~l~~~~~~~~----'1
"'··d.
'. '
iL _ _ ~ I
! I
! I
I
I
l
I
I
I
I
l DECKAXIS
I"-TIM K£T cAU NHIP
I
I
I
I
I
I
I
I
I
- LBOTIOM BLISTER TYPE 5 ~­
BOTTOM BLISTER TYPE 5
SEE DWG. NO. - PIC-TEC-G O-WVO-J00-18330-e
XEM BANVE SO - PIC-TEC-GDO' OC>-18330-B
1--~~~ i
~ ----.......~~...._~~........~~~~~~~~---1
~ 1..._~54=0~..._1 ~~-1=~=0.__~~~I
HALF SECTION D-D
NCrA MAT CAT D-D
SCALE: 1/20
TY L1~:1/20
I
I I I I I II I I I I I@
KEYPLAN sea
MAT BANG cHrNH
SCALE : 1/500
TY L!;: 1/500
11, 11t#A I
II II Iiisea•
I
1
J
-Jj- ~I r;_,ili_ f I
~L DETAIL-1
CHI Tl~T-1
SCALE: 115
TYLl;:l/5
NOTES:~~~~~~~~~~~~~~~~~~~~
GHI CHU:
1. ALL DIMENSIONS ARE IN MILLIMETERS.
1. TAT cAcAc K[CH THllO'c TliEOElONVJMM.
2. CONCRETE GRADE FOR DECK: F'C=45 MPA (CYLINDRICAL)
2. ~ e£; TONGEl(SI Veil e.(N MAT cAUl'o=4S J.1pe CMAUTRl,I)
a.FOR GENERAL SEGMENt ARRANGEMEfff REFER TO DWG. NO.
3. El~ XEM BO TRI PHANElOAN CHUNG XIN XEM BANVE SO
PIC-TEC-GAD-WVO-J00-18007-B TO PIC-TEC-GAD-WVO-J00-1800S-B
~
:l: I II PROJECT IMPLEMENTATION CONSULTANT PRO.ECTI DI/ ~ : HANOI PILOTUGKT METROLINE Sadlon Nhon- Hrml RalwaySlllllan
..
~ l!i , ru vJN THVC Hl~N 011 AN "'"'TEC<lll().WY<>.KJ4.1....,_,.,owe - ru~N Ell/ONG s.J.TaoTHI THI01t:MTP HANOi Eoflll Nhfin-Ge H~ NOi
5~ SftTRASA
t ~ ..: HRB DESJGNEDBY Tlli£r~ : FORIMTl~eANv£ : DATEINGAY: TITlf~NeANv£ : NHUE RIVER CROSSING
ALENMIETtN BAN~: STATUSIT1NH T~:
Technicel Deeign
7 i!~ 2A 3MJ.1/'1 1 2nd•ubml11ionotlllchnlcald-.,, A.K 6 . Maurte P. Amaud A.K A1 a1/01/10 WQ'TSONGNHUI;:
! ! S t-~~~-t:~:~~;;.._;-=~~00aPDA=~=------------~~:::.;~'°'----F::..:::::=~::::~:"'":::=::_-1 HANOI METROPOLITAN RAIL TRANSPORT PROJECT BOARD Cl£Cl<ED BYsoAT : "'~•-'II"""""',._.,._,,_,.,._ __, DECK - SEGMENTS SA3'-5A3-SB3-SB3' - CONC OUT
~ ~ ~ 1A m11110 Fir"118aJo A.K p . Maurie P.Amaud BANDl/ANflUONGsATDOlHIHAN(ll 1--G_._M_a_u_ris..,...--....,.........,....-1 =:.::~~.,..-ror.,,,.p._w111oo.1111opt1or- BAN~Tc:AU - Pl-IANDO~SA3'-5A3-SB3-SB3' - K~TcAU B~ T0NG
-
~ I~ REVISION DATE DESCRIPTION DelllNEDl!Y IHlllEIJl!Y CllJEFOFDBD PROJECT01REC10R1G1Ar.1rocD11AN: CH1EFoESJGNER1CHONH1eMTH1~~: ..,"'""'""'"" "-""'pd•"'•"""'""'"'"'"""'~...,.., DRA'MNGN0.1BAN~so : I
~._~_~___._w_~_D01_.__N_~_Y_._~~~~~~-1_~_NG_s_~_~_1~~~~--'~ra1_~E~~~D~r ~-'-oo-1_llill_nEl~E..._~~~~~~~~~~~~~~__J-A_la_in~B~_ch~e~_a_u~~~~~~~~~~...L~~P~.~Am:..:.::a=ud:..._~~~...L-...,,~~-·m_•""""~•-"-~••_o1no~t-...,~'*'-..,~,...-"_RB.~~~-L~~~~~p~l~C~-~T~E~C~-~G~D~O~-~'li/V!.!~Q~-J!!!!0~4~-1~8~3~0~9~-~B~l...;2~A~
~
~
';;; l!;
.. nt ~ ~7
i ~
! ! ti
~ ~~ ~ ',!!
~ n0..
2A
1C
DETAIL 1
CHIT! T1
1000
SLOPE1%
EO dOc 1%
1289
5085
639 930
, 4
HALF SECTION A-A
NO'A MAT CAT A-A
SCALE: 1/20
TYLS:1120
I
I
I
I
I
I
I
I
I
I
I
I
I
I
5085
TOP BLISTER TYPE 7 I
TOP BUSTI:~ TYPE 1
SEE DWG. rNO. - PIC-TEC-GDO.wv~cl>o-18355-B
XEM BAN VEISO-PIC.TEC-ODO-WVO.J00-18355-8
1000 1289
I
I
I
I
I
I
I
I
I
I
I
I
I
639
,--- -- - 11
II
II
II
II
II
II
II
II
11
II
II
I
I
I
I
I
I
I
I
I
I
I
I
I
I
Ir I
11 I
111- - 1 I
::--=--=--=-.:-.=SI
930
VIEWC-C
GOC NHiN C-C
d'.
SCALE: 1/20
TYLS:1120
I I I I I I I I I I I I I t¥ttj
KEYPLAN
MAT BANG CHfNH
S82 ~II
3MJ.1111 2nd .subml111lon ofl&dinlcaldea9'1
2Mllltl0 u 1lld
SCALE : 11500
TYLS: 1/500
A. K
A. K
SYMMETRY
1226
~
A '• filN
1240
I DECKAXIS
r TIM K£T cAU NHIP
1226
"''
HRB
18 ZW&'"IO UPDATED
1A 3U J1110 Fim-.
A. K HANOI METROPOLITAN RAIL TRANSPORT PROJECT BOARD
t----+-----+---------------4-A.-K_ __.__ __.__ _-l BAN Dl/ANflUONGsATDOlHIHAN(ll
REVISION DATE
SC/ADO! NGA.Y
DESCRIPTION
NQI DUNG SO'A DOI
DelllNEDl!Y
111itl"K£
"'1EfSA3
SB3
5B3'
,,-------
fil
,
0 ~ ;
N 4
M
filM
..
SA2.'
SA2.
SB2
582'
'.
<l. . ..
3000
~SA1'
TSA1
SB1
SB1'
---------.....
§
M
527
4
' ,
4
548
I
l
I L __ --'
I
I
I
I
I
I
I
I
I
I
I
I
I
I
I
I
I
I
I
I
I
I
I
I
I
I
1189
'
I
DECKAXIS J
TIM ~T cAu NHll
- BOTTOM BUSTERTYP.l
BOTTOM BLISTER TYPE B fSEE DWG. NO. - PIC-TEC DO.WV~00-18330-B
XEM BAN vE s0 - PIC-TEC-G WVO.J00-16330-B
SECTION B-B
MAT CAT B-B
4
I 521 I 548 I 1240
HALF SECTION D-D
NO'A MAT CAT D-D
SCALE: 1120
J
I
~DETAIL-1
CHI Tli;T-1
SCALE: 1/5
TYLS:1/5
TYLS:1120
PROJECT IMPLEMENTATION CONSULTANT
TU VJN THVC HISN DIJ AN
SYSTRAS.A
PROJECTDIRECTORIGIANElOcD./AN :
Alain B'9chereau
ALENMIEITtN BAN'IE:
DESIGNED BYTll1£r~ :
A. K
DETAIL 1
CHIT! T1
1000
SLOPE 1%
f>Od6C 1%
• 0
1289
FORIMTI~BAN v£ :
A1
5085
639
SCALE: 1/20
TY LS:1120
930
L
I: , I •-~
<1 .<:J •
. '!!·
2055
1226
D
1189
8
"'
HALF SECTION E-E
NO'A MAT CATE-E (")SCALE : 1/20
TY LS:1120
NOTES:~~~~~~~~~~~~~~~~~~~~
GHI CHU:
STATUSlT1NHT~ :
Technical Deeign
DATEINGAY:
31/01110
1. ALL DIMENSIONS ARE IN MILLIMETERS.
1. TAT cAcAc K[CH THllO'c 11-IEOEONVI MM.
2. CONCRETE GRADE FOR DECK: F'C=45 MPA (CYLINDRICAL)
2. ~BE TONGE(SI Veil B.(N MAT cAUl'o=4S J.1pe CMAUTRl,I)
3. FOR GENERAL SEGMENt ARRANGEMEfff REFER TO DWG. NO.
3. EiS XEM BO TRI PHANElOAN CHUNG XIN XEM BANvE SO
PIC-TEC-GAD-WVO.J00-18007-B TO PIC-TEC-GAD-WV~00-18009--B
PRO.ECTI Dll AN : HANOI PILOTUGKT METROLINE Sadlon Nhon- Hrml RalwaySlllllan
ru~N WONG sATflO THITHIDlt:M TP HANOi Eo911 Nh&i -Ge H~ NOi
TITlfl~NeAN~ : NHUE RIVER CROSSING
WQ'T SONG NHUI;:
Cl£Cl<EDBYsoAT : no~ •-.-.i """"" '" _""_,,_,.,._ __, DECK - SEGMENTS SA2'-8A2-SB2-SB2' - CONC OUT
G. Mauris ~ whol1 or in port<r.- for anyp,_ w111oo.1111opr1or-
1-------------1 perm~~dHRB.
CHIEFDESIGNERICHOi'fileM THI~ ~ : ..."'. ..""'"•._....pd . .....,.,, '""hlm ' "'"· ~........
P. Arnaud """bO,m•""'"•"-••<Doot...,..,..,,..HRB. 2A
BAN ~T c:AU - PHAN ao~ SA2'-5A2-SB2-SB2' - K~T cAU B~ TONG
DRA'MNGNO.BAN~ SO :
PIC-TEC-GDO-WVO-J04-18310-B
B
I SYMMETRY
. --508_.....5-__--'-~---==---~'----~~-------<~~IXCING ~- 639 930 1226 ~
548 1189 I
•
0
a ·• d I I
-. L I ~
~,...-~: 1.,·.,so·o·-~j----1·....,._~-.-.-~...«--"'"'"i-
_1__L____j_ _ _ _ _ __.__ _ _ _ _ _ _ _+----- .<€~ • ' q ; q • ~ • • "' • . ~~
1000
I
1289 741 I
HALF SECTION A-A
NO'A MAT CAT A-A
SCALE :1m
TYLl;:1/20
5085
2055
B
~---------------...-----------------------
! DECKAXIS
rTIM K£T cAU NHIP
I
I
I
I
I
I
I
I
I
I
I
I
I
I I
TOP BLIST~R TYPE 7 ;
TOP BLISTE~_TYPE 7
SEE DWG.1NO. - PIC-TEC-ODO-WVO.JQ0-18355-B
XEM BAN~ SO - PIC-TEC-GOO-WVO-J00-18355-B
I
I
I
I
I
I
I
I
I
I
I
I
I
,------11
I II
I II
I II
I II
I II
I II
I II
I II
I II
I II
I II
I I
I I
I I
I I
I I
I I
I I
I I
l !
11 I
11 I
11 I
11 I
l1r--1 I
l:--=--=--=-.:-~I
~L---------L--------....l....---.....J..--------l----------
I 1000 I 1289 I 639
VIEWC-C
GOC NHlN C-C
SCALE: 1120
TYLl;:1/20
I 930
L---L-----L--------------4----1-----+-----I CLIENT:
L---L--~---------------+----1------+-----I CHOEIAUnr:
2A 3MJ.1/'11 2nd•ubml11lonoflllchnlcald-'11l A.K r.. Maurte 0 . Amaud
1226
I
HRB
1C 2Mllltl0 Uodatlld A. K r.. Maurte 0 . Amaud
~1~8---1:zw=::&'"l~O~~U~PDA~JED~-----------+::A.:::.:K.:....__-FG.:..::Ma:::u::.:rio'-fo..:..:.Amaud==--~ HANOI METROPOLITAN RAIL TRANSPORT PROJECT BOARD
1A 3UJ1110 Fir"118aJo A. K G. Maurie P.Amaud BAN DI/ANDUONG BAT DO THI HAN(ll
REVISION DATE DESCRIPTION DelllNEDl!Y IHlllEIJl!Y CllJEFOFDBD
SC/ADO! NGA.Y NQICUNGSO'ADOI lllitl"IE DI OONlfillnETIE
I
I
SAZ
SB2'
,,.------
0
SA1'
SB1
•.
I I I !!!l~lllll'SA11It'SA1
I
I
! I I I I I I I I I I I I
KEYPLAN
MAT BANG CH[NH
• SCALE : 1/500
TY LI;:: 1/500
I
I
Hi- ~· I
;Lill t l
11 I I I II Iii
"
~r~:t1=:..~·==·~· =·=·=·=·=·=·=·=·"~·~·~:.~.~~J.~~u
~_ijj__ DETAIL-1
CHI Tli;T-1
SCALE: 1/5
TYLl;:1/5
II
524
3000
SECTION B-B
MAT CAT B-B
• SCALE :1m
TYLl;:1/2D
548
r I
1128
- -.---..........----...------r-----------~I
.'
... _.;, ·_. 'I
q
'
l DECKAXIS
I - TIM KElcAU NI
c_L.;..................J..._......1.._ _ _......__ _ _ _ _ _____,,
I 524 I I 548 I 1189
HALF SECTION D-D
NO'A MAT CAT D-D
SCALE: 1m
TYLl;:1/20
PROJECT IMPLEMENTATION CONSULTANT
TV VJN THVCHle:N DIJ AN
ALENMIEITtN BAN'IE:
SYSTRAS.A
DESIGNED BYTll1£r~ :
A. K
FORIMTI~BAN v£ :
A1
STATUSlT1NH T~:
Technical Deeign
DATEINGAY:
31/01110
Cl£Cl<EDBYsoAT : n.~•-.-.i"""""""_""_,,_,,.._ __,G. Mauris ~whol1or in portot.-foranyp,_w111oo.1111opr1or-
PROJECT DIRECTORIGIANElOcD./AN :
l--------,......,----1 perm~~dHRB.
CHIEFDESIGNERI CHOlfileM TH1£r ~ : ..."'. ........._ ph6pd . .... . ,.,, '""hlm .....~........
Alain B'9chereau P. Arnaud """bO,m•""""•"-••<Dlot...,..,..,,...HRB.
N O T E S : - - - - - - - - - - - - - - - - - - - -
GHI CHU:
1. ALL DIMENSIONS ARE IN MILLIMETERS.
1. TAT cAcAc K[CH THllO'c THEO ElON VI MM.
2. CONCRETE GRADE FOR DECK: F'C=45 MPA (CYLINDRICAL)
2. ~BE TONGEl(SI Veil B.(N MAT cAUl'o=4S l,1pe CMAUTRVl
3. FOR GENERAL SEGMENt ARRANGEMEfff REFER TO DWG. NO.
3. ElEXEM BO TRI PHAN ElOAN CHUNG XIN XEM BAN~ SO
PIC-TEC-OAD-WVO-J00-18007-B TO PIC-TEC.GAD-WVO-J00-16009-B
PRO.ECTI DI/AN : HANOI PILOTUGKT METROLINE Sadlon Nhon- Hrml RalwaySlllllan
ru~N WONG sAT00 THI THIDlt:MTP HANOi Eo911 Nh&i· Ge H~ NOi
TITlfl~NBANv£ : NHUE RIVER CROSSING
WQ'T SONG NHUI;:
DECK- SEGMENTS SA1'-5A1-SB1-SB1' - CONC OUT
BAN ~Tc:AU - PHANao~SA1'-8A1 -SB1 -SB1 ' - K~TcAU B~ TONG
DRAWINGNO.lBANvE so: IPIC-TEC-GDO-WVO-J04-18311-B 2A
~
~.,
t7
!~
~a..
SA1'
I ,----------
0 . . '
~ 4
I
"cl'l
DETAIL 1
CHITll:T1
1000
' . '
4
4 y
SLOPE1%
fl() d6c 1%
' .
D
5085
,.
1289 896
.
. '
HALF SECTION A-A
NO'A MAT CAT A-A
<.
SCALE: 1/20
TYLl;::1/20
11 L.1;;.l l olCU
E{
4
. .4 '.~- =-- --....
' ,_
a
I
4 ~ .
o:l. <1 :1- .,
". 4
.
1
¥1ERP152
D<>• L,J P152
I a 4 o ... tl,l s
' 4
. •· . ~,4
4.. ,_
l-~I a·
0
"' - ~ <I _<1
IO I.., I
~
. ..,
.' ' •'.·4 4
..I , . : " ~ ~ .,
.I I .II 1111
I
L~I
I
(lrtiI
lll en I
L_j)--JJ..--( II 0
en ~
0
!':l.... ~ I ..- - I
1il)
~
..,
~:;r:i:-:f
I-- - -- -
3rM
c 3
I
.lll I
0
CIO
N
. .. I ~.
~
.. ' H 4 ~ 4
' • 4 ,. . 4 . ' . • I
s
IO •.4 <d-
' '
. . 4 . .. 4 4<
.4 . ' '
'<l·.. . . 0
'
4 . . ' 4
'
4
- ·1 .,~-
.4 . 4
' . 4 . . .. 4. g. f6' ir .,.
," ..... . . .
. ' j • 4_, 4 _, .~ "
_, . . . . 4
- 4 4 . -
I
I
2750 3500
9000
SECTION B-B
& MAT CAT B-B
Il!;
~ ~
~ {i
~~
SCALE: 1/20
TYLl;::1/2D
1-----+-------------------+----+---+----t CLIENT:
t - - - - + - - - + - - - - - - - - - - - - - - - - + - - - - + - - - + - - - - - 1 CH0£lAUT~
2A 30A'.Ml11 2r<l aubmll1lon ol 18"1nlcal d""91 A. K HRB
'
.
a
4
' 4
• 4·
' .,
. .4
,. . 4 4
·. -~
4 .' '.4
I
4
!~ 1C 2M'.IB/10 u lad
I ~
18 23.118110 UPDA"JE)
A. K
t--=--F"-=""'-+"==--------------+-A.'"-'K'"----+"-==-+~=--1 HANOI METROPOLITAN RAIL TRANSPORTPROJECT BOARD
1A 31A'.11110
~ '!!!
B
REVISION DAlE
S(fA llOI NGAY
Finll i...
DESCRIPTION
NQI DUNGSCIA901
A. K BAN llllAN flUONG8AT00THI HAN()I
DElllliEDBY
1111tr~
illlllEDBY
!OIT
.
' . .
4
44 . ,, 4 ·4 4
;; a ' 4
-------
~
4 , . 4 .. ' ' .,
"·. .. 4
'
. .4
'
.. 4'
'. ., 4
. .
2750
•PROJECT IMPLEMENTATIONCONSULTANT
1V V11<1 THVC HIENDIJ'AA
SYSTRAS.A
PROJECTDIRECTORI GIAN 90c Ill/AN :
Alain B6chereau
. '
;,
.a 4
.
4
DETAIL 1
CHI Tll:T1
1000
SA1
----------...
0
' ~
~~
5l..,
en lll
~ CJ>
N
lll
I
M
' . -~
~. IO
' ."
;N
E
FILENMIE TtN BAN'IE :
DESIGtlEllBY1H1£rKl::
A.K
5085
1289 896
'.
4
,4
..
500
B
D
.....
'
.
8
~
'
236
1900
HALF SECTION A'-A'
NO'A MAT CATA'-A'
SCALE : 1/20
TY Ll;::1/2D
STA.TUSITINHT~ :
Technical Design
DATE NGAY:
31/01/10
SCALE : 1/5
TYLl;::115
NOTES: ~~~~~~~~~~~~~~~~~~~~~
GHI CHll:
1. ALL DIMENSIONS ARE IN MILLIMETERS.
1. TAT cA cAC KICH THIJ()'c THEOElO'NVI MM.
2. CONCRETE GRADE FOR DECK: F'C=45 MPA {CYLINDRICAL)
2. C$.P Bl: TONG EOI Vcll BAN MATcAUl'c=46 r-,ApeIMAUlRl,I)
3. FOR GENERAL SEGMENtARRANGEMENT REFERTO DWG. NO.
3. El: XEM BO TRI PHAN EOAN CHUNG XINXEM BAN~SO
PIC-TEC-GAD-WVO-J00-18007-B TO PIC-TEC-GAD-WVO-J00-18009-B
PRO.ECTIDI/AN: HANOI PILOT UGKT METROLINE SectionNhon-Henol Ralway Slldlon
ruvt:NOlfOt.lG sAT00llllmlOlt:M TP HA NOi Elof,rl Nh6'! -Ge HANOi
Tm.ETtNBAN'IE : NHUE RIVER CROSSING
WQ'T SONG NHue
DECK - SEGMENT PS1 - CONC OUT - 1 / 2
BAN ~T cAU - PHAN OO~N PS1 - K8' cAU B~ TONG - 1/ 2
DRAWINGNO. BAN'IESO:
PIC-TEC-GDO-WVO-J04-18312-B 2A
I
I
I
I
I
I
I
I
I
I
I
I
I
I
I
:§I <'?
I
I
I
I
I
I
I
I
I
I
I
I
I
I
I
I
I
I
I
I
I
I
I
I
I
I
I
I
I
I
:§I <'?
I
I
I
I
I
I
I
I
I
I
I
I
I
I
I
I
I
I
I
I
I
I
I
I
I
I
I
I
I
I
I
1§
I <'?
I
I
I
I
I
I
I
I
I
I
I
I
I
I
I
I
~ 1-------T~I I
i iI
I I
H::tI I
I I
I I
I I
I I
I I
I I
I I
I I
I I
I I
I I
I I
I I
I I
I I:._____ L _ ___ __ _ _l
I~~-----------------------_._______......__.________,
I:
1000 1289 639
5085
VIEWC-C
GOC NHlN C-C
SCALE: 1/20
T'i' L!'::1120
930 1226
:I
527
4
.' "
a
548 1128
• 4
548 1066
HALF SECTION D-D
NO'A MAT CAT D-D
SCALE: 1/20
T'i' Ll~:1/20
I
I
I
I
I
I I I I I I I I I I I I I
KEYPLAN
MAT BANG CH[NH
SCALE: 1/500
T'i' Li;: 1/500
548
1 11, 11 111
11 1
1128
I
__ ___1 .....;g=+-------! -
~ I 500
~
"f
~~~~+--~~~~~~+--~~~~~~~~-'-~~~~-~-------------~ -~
1000 1289 818 I
HALF VIEW E-E
NO'A MAT E>O'NG E-E
SCALE: 1/20
T'i' Li;::1120
1978
B
NOTES:-~~~~~~~~~~~~~~~~~~~­
GHI CHU:
1.ALL DIMENSIONS ARE IN MILLIMETERS.
1. TAT cAcAc K[CH THllO'c TliEOElONVJMM.
2. CONCRETE GRADE FOR DECK: F'C=45 MPA (CYLINDRICAL)
2. ~Bl': TONG EJ(SI Veil B.(N MAT cA.ul'o=4I; l.1pe cMAU TRl,I)
3. FOR GENERAL SEGMENt ARRANGEMEfff REFER TO DWG. NO.
3. El~ XEM BO TRI PH.'.N ElOAN CHUNG XIN XEM BAN VE SO
PIC-TEC-GAD-WVO-J00-18007-B TO PIC-TEC-GAD-WVO-J00-18009-B
~ 1 o----+---+---------------_.____..__ ___.....__ __, CLIENT: II PROJECTIMPLEMENTATIONOONSULTANT STATUSlT1NHT~: PRO.ECTl Dl/ AN : HANOIPILOTUGKT METROLINE Sedlon Nhon-HrmlRalwaySlllllan
~ ! CHO~•" n ~ TV V.'..' THVC Hl~N DIJ ,., Technical Deeign
..
~ l!; l----+---+---------------_._---+------ii-------1 """' 'Vo • "" ~ ,.., PIC.TEC<llX).Wllt>.KJ4.lal1H_:rADW<> - ru~N Ell/ONG sATOO THI THIDlt:MTP HANOi Eoflll Nhfin-Ge H~ NOi
~ ~ SftTRASA
t ~ ~ HRB DESIGNED BYTll1£r~ : FORIMTl~eANv£ : DATEI NGAY: TITlf~NeANv£ : NHUE RIVER CROSSING
ALENMIETtN BAN~:
7 i!~ 2A 3MJ.11'11 2nd•ubm1111onotlllchn1ca1d-.,, A.K 6 . Mauite 1>. Amaud A.K A1 31/01110 WQ'TSONGNHUI;:
~ ! ti ~~ ::~ ~::.~ ~~ :::~: :::::: HANOIMETROPOLITANRAILTRANSPORTPROJECTBOARD Cl£Cl<EDBYsoAT : "'~"-'II"""""'"_""_,,_,.,._ __, DECK-SEGMENTPS1 -CONCOUT-2/2
~ ~ ~ 1--1-A--tl-31-m-111_o_F__i'"1________________.,.A._K_ __.,.6_.. Ma-urie---11-P.-Amaud-----I BANDl/ANflUONGsATflOlHIHAN(ll __G_._M_a_u_ns______. =.::~~or-foranyp-wlhoo.llhoprior- BAN M,!..TcAU - PHANOO~N PS1 -mcAu B~TONG - 2 / 2
...._~ ; ~ REVISION DATE DESCRIPTION DelllNEDl!Y IHlllEIJl!Y CllJEFOFDBD PROJECT01REC10R1GIAMrocD11AN , CH1EFoES1GNER1CHO l'fi1eMTH1~~: ....... ....... ._,.,.pd•"'•"""'""'"'"''"'"·~...,.., DRA'MNGNO.BAN~so : I~~~-~___.~w-~_D01__._NGA:_Y___.._______N0_1_~_N_G_sa_A_D0_1_______.~™-1~E--_._D_r_ __._00_119_11ET_E.._________________.__A_la_in_B_~_ch_e_~_a_u___________L-_P_._Am_a_u_d____...1..._...,,_~_. m_•""'"_•_"-_•_•.en.__'...,_'*'_..,_,..._"RB.------'----__:p:....:..1C=---T.:...=E~C~-~G~D::..:O~-~V'/V..:..:~Q~-J..::.:0~4~-~1~8~3~1~3~-~B:.._..L...:2=A:..:...J
B
5085 5085 SYMMETRY
SLOPE 1%
l')Od6C1%
1226 SLOPE 1%
flO d6c 1%
I Xli~
DETAIL 1
CHITl~T1
1000
D
1289 896
DETAIL 1
CHI TIET 1
1000
HALF SECTION A-A
NO'A M~T CAT A-A
SCALE: 1/20
TYLS:1/20
I ~ d ~4 ._ 4 < f 4 4 < t , ·"' d~ ~
"""' d <I. "4 A . ., ...,,.
ir--t-.M•t--i---.......----------.............------------.')j,
l
r--r-~'l--t----------------------t~ ;·
L_+-+-+---------....,,,........~------:;_---------4
I ~
I
I
:.. 4 4 I ., .d <1 4 4 <I <l .a. 4 4 ..., - .a. . d -¢ fil: I
·~ ...;.-..".l :....':.(~11_,·,:______"_·___·_.__·__·_-___._~__·- -:-i---r--1'1·
. .. :. '. !. . : 1~;,-i____________________..,+-+--"I
I Hr--1f.1 I
I f-----{LJ.j_LJ : ~ ~ I
1
1 I - I ~ N
I I
310 ~_.,,/~---- ) I
.,._ll'llL'3
l~frll~t=~====----------J iii I _ ... ·- - rll J
I • • • ~ I _ -. , - .. I
2750 I
9000
SECTION B-B
M.ATCATB-B
SCALE: 1/20
TYLE:1/20
I 2750
I
1289 896
. '
. .I< 4:
 .'
•. 
. ' 
' ,.
•rJ$J " • 548 1066
' .' ·1,__4 ~.~. ~----~----<
 . . .
" .,·.4 4 . .<. ___.__~_~~-,-.-+-.....+-
• d ..:_ - -
.' ..'
HALF SECTION A'-A'
NO'A M~T CATA'-A'
SCALE: 1/20
TY Ll;:1/20
SCALE : 1/5
TYLE:1/5
j
I
NOTES:~~~~~~~~~~~~~~~~~~~~~
GHI CHU:
1. ALL DIMENSIONS ARE IN MILLIMETERS.
1. TAT cAcAc K[CH THllO'c TliEO flON VI MM.
2. CONCRETE GRADE FOR DECK: F'C=45 MPA (CYLINDRICAL)
2. ~ B~ TONG fl(SI Veil B.(N MAT cAUl'o=4S l,1pe CMAUTRl,I)
3. FOR GENERAL SEGMENt ARRANGEMEfff REFER TO DWG. NO.
3. EieXEM BO TRI PHANElOAN CHUNGXIN XEM BANveso
PIC-TEC-GAD-WVO-J00-18007-B TO PIC-TEC-GAD-WVO-J00-18009-B
o----+---0-----------------+----+-----1>------i CLIENT: II PROJECT IMPLEMENTATIONCONSULTANT ALENMIEITtNBANvE: SCALElrr~: STATUST1NHT~ : PRO.ECTIDll AN : HANOI PILOTUGKT METROLINE Sadlon Nhon-Hrml RalwaySlllllan
..~ ! 1----+---1-------------------+-----11-------1 CHO EIAU nr: • TV VJN THVCHISN DIJ AN PIC.TEC<llX).Wllt>.KJ4.1D1..._:rADWe Technicel Deeign ru~NEll/ONG sAT00 THITHIDlt:MTP HANOi Eoflll Nhfin. Ge H~NOi
•• SYSTRA S.A
:.: n HRB aes1GNED BY1rn1£r~ : FORJMn~BANv£: DATEINGAY: rru1~NBANv£ : NHUE RIVER cRoss1NG
i ~ i 2A 3MJ.11'11 2nd•ubm1111onotlllchn1ca1d-.,, A. K A. K A1 31/01110 WQ'TSONG NHUI;:
n ! ti 1--1
"'c---1""2Ml""11t1~o-+-u=""111c1'--------------+-A.""K'----F'-'==--+'~=--i HANOI METROPOLITAN RAIL TRANSPORT PROJECT BOARD Cl£Cl<EDBYsoAT: "'~"-'II"""""'"_""_,,_,.,._ __, DECK- SEGMENT PS2 - CONC OUT-1/2
~ ~ ~ ~= ::~ ~::= ~ ~ BANDl,l'ANflUONGsATDOlHIHAN(ll __G_._M_a_u_ris...,....----,.....,.---1 =.::~~...-foranyp- wllloo.llhoprior- BAN M,!..TcAU - PHANOO~N PS2 - mcAu B~ TONG - 1 / 2
~ Ii ~~ ~ NQ?~:~~:o, ~r :mBf =~~E ~~i~:~=~~
6
uw..eocDlfAN: CHIEFD~=~~:NHieMTHl£r~: :.:~~.=.-=.~:~":"..:.::.:.·:~:.~......... DRA'MNGNO.lBANvE~lc-TEC-GDo-wvo-Jo4-1B314-B 2A~...___.____.___.________________.....___.......__...____._________________...._________________.___________.....________________.____________________......____,
I
I I
I I
I
I
I
I
I
I
I
I
I
I
I
I
I
I
I
I
I
I
I
I
I
I
I
I
I
I
I
I
I
I
I ~ ,------- T
I I I
I I I II I I
I I I
: I I
: : : I
i n:30 :
I : ~O
I I I
I 8 I .
i ~ i
i iI
i iI
i ~'-------1
1
i I
i I
i ~
i
iI
I I
: i~ L..._______.____ _____.._______..___...........i..,------1
<
,.
' ·.
.<
. ~.
'
'<
548 1066
I
1 - 1_ _1_0_00______1_28_e____I _5D"""':,,...e__1_ _ _93_0______1_22_s___1
I 521 I I 548 I 1128 I
VIEWC-C
GQC NHiN C-C
SCALE: 1/20
TYL1;':1/20
L---L------1--------------4----1-----+-----I CLIENT:
L-~-L-~~~~~~~~~~~~~~~--+-~~~l--~-+~~---1 CHOEIAUnr:
2A 3MJ.1/'11 2nd•ubml11lonoflllchnlcald-.,, A.K r.. Maurte 0 . Amaud HRB
HALF SECTION D-D
NUA MAT CAT D-D
II
SCALE: 1/20
ti'LS:1/20
PROJECT IMPLEMENTATION CONSULTANT
TV VJN THVC Hl~N DIJ AN
SYSTRAS.A
1C 2Mllltl0 Uodatlld A. K r.. Maurte 0 . Amaud
~1~8---1:zw=::&'"l~O~~U~PDA~JED~-----------+::A.:::..:K.:___-FG.:..::Ma:::u::.:rio'-fo..:..:.Amaud==--~ HANOI METROPOLITAN RAIL TRANSPORT PROJECT BOARD
PROJECT DIRECTORIGIAMElOcD./AN :
Alain B'9chereau
1A 3UJ1110 Fir"118aJo A. K G. Maurie P.Amaud BAN DI/ANDUONG BAT DO lHIHAN(ll
REVISION DATE DESCRIPTION DelllNEDl!Y IHlllEIJl!Y CllJEFOFDBD
SC/ADO! NGA.Y NQICUNGSO'ADOI lllitTIE DI OONlfillnETIE
I 11 1 1111 1, LII
! I I I I I I I I I I I I
II II I II 111KEYPLAN
MAT BANG CH[NH
• SCALE : 1/500
ti' LS: 1/500
B
-  DETAIL 1 "')..l
CHI Tl~T 1 'C#/..
548 1128
l
_[__.I..__1---------+---------+-----~"'---------------' -~
1000 1289 818 I 1976
HALF VIEW E-E
NUA MAT DUNG E-E
ALENMIEITtN BAN'IE:
DESIGNED BYTll1£r~ : FORIMTI~BAN v£ :
A. K A1
STATUSlT1NHT~:
Technical Deeign
DATEINGAY:
31/01110
Cl£Cl<EDBYsoAT: n.~•-.-.i"""""""_""_,,_,.,._ __,G. Mauris ~whol1or inportot.-foranyp,_w111oo.1111opr1or-
1--~~~~~~,......,---1 perm~~dHRB.
CHIEFDESIGNERICHONHleM THI~ ~ : ..."'. ..""""•._ ph6pd . .... . ,.,, ""'hlm ' "'"·~........
P. Arnaud .,..oo,m•""""•"-••<Diot...,..,..,,..HRB.
SCALE: 1120
ti' LS:1/2D
NOTES:~------------------~
GHI CHU:
1. ALL DIMENSIONS ARE IN MILLIMETERS.
1. TAT cAcAc K[CH THllO'c THEOElONVI MM.
2. CONCRETE GRADE FOR DECK: F'C=45 MPA (CYLINDRICAL)
2. ~ e£; TONG EJ(SI Veil e.(N MAT cA.ul'o=4I; l,1pe CMAU TRl,I)
3. FOR GENERAL SEGMENt ARRANGEMEfff REFER TO DWG. NO.
3. El~ XEM BO TRI PH.'.N ElOAN CHUNG XIN XEM BAN VE SO
PIC-TEC-GAD-WVO-J00-18007-B TO PIC-TEC-GAD-WVO-J00-16009-B
PRO.ECTI DI/AN : HANOI PILOTUGKT METROLINE Sadlon Nhon- Hrml RalwaySlllllan
ru~N WONG sAT00 THI THIDlt:MTPHANOi Eo911 Nh&i-Ge H~ NOi
TITlflrtNBANv£: NHUE RIVER CROSSING
WQ'T SONG NHUI;:
DECK - SEGMENT PS2 - CONC OUT - 2 / 2
BAN M,!..T cAU - PHAN OO~N PS2 - m cAU B~ TONG - 2 / 2
ORA'MNGNO.BAN~ so: IPIC-TEC-GDO-WVO-J04-18315-B 2A
B
1447
• -0
~ __ -"'--""'"'--...______________.,1" -
·~~ 4'1• seo4~ ~ • , • • • , ,
~~~__.~~~~~~---+-~~~~~~~~-'-~~---'------~----~·....;....------~· ~· ....;....___.. -~
1000
I
1289 525 I
HALF SECTION A-A
NO'A MAT CAT A-A
SCALE: 1/20
ITLfi':1/20
5065
2271
B
~ -----------------------------------------------------------------------!
I
I
I DECKAXIS
r TIM K8' cAu NHIP
~.____________._________________._______...__________.__________________,
I 1000 I 1289 I 532 I 880
VIEWC-C
GQC NHiN C-C
SCALE: 1/20
TYLS:1/20
I 1364
I
I
SA5
SB5
~
SAS
SB6
t11 I I I I I I II1'°1I
SA7
SB7
------.._ I
I I
1,15
II I I I I I I II !ifbl I I I I I I tffd I I ' ' : ~: I ' ' ' ' ' ' '
SA6 SB6
KEYPLAN
MAT BANG CH[NH
SCALE : 1/500
ri' LIS: 11500
l--41·=nl-~-·-'-4--··_.......----"·--·-·.__.......___._.__._~___:~4--~__._._~_. __._·_,_:~~ I
I
I 3000
SECTION B-B
MAT CAT B-B
SCALE: 1/20
IT Lfi':1/20
546
I I
I
I
1463
I
~--~----~------~-------------------11
.'
.A
A '
.
A
A ........ ,
I
I
- BOTTOM BLISTER TYPE 2 IBOTI'OM BLISTER TYPE 2
SEE DWG. NO. - PIC-TEC-G~WVChJ00-18330-B
XEM BAN ve so-Pie.TECGCJO. I .Joo.1e330-8
j'-oECK AXIS
I TIM K!:TcAu NHIP
I,-•, I
~._· __4 ___.___. . . _ l_ _ _ __ . __ _ _ _ _ _ _ _ _ _ _ _ _ _ _ _ _ _i
~ I 548 I 1447
HALF SECTION D-D
NO'A MAT CAT D-D
SCALE: 1/20
ri'LIS:1/20
I
Ht- ~j I
_;1ilt_ t I
J!¥,LJll__ DETAIL -1
CHI TIET-1
SCALE: 1/5
ri' LIS:1/5
NOTES:~~~~~~~~~~~~~~~~~~~~
GHI CHU:
1. ALL DIMENSIONS ARE IN MILLIMETERS.
1. TAT cAcAc K[CH THllO'c THEOElON VI MM.
2. CONCRETE GRADE FOR DECK: F'C=45 MPA (CYLINDRICAL)
2. ~ ee TONG EJ(SI Veil e.(N MAT cAUl'o=4I; lApe CMAUTRl,I)
3. FOR GENERAL SEGMENt ARRANGEMEfff REFER TO DWG. NO.
3. ElEXEM BO TRI PHAN ElOAN CHUNG XIN XEM BANVE SO
PIC-TEC-GAD-WVO-J00-18007-B TO PIC-TEC-GAD-WVChJ00-16009-B
~ 1
o-----+-----+--------------------------_._______.___________. CLIENT: II PROJECT IMPLEMENTATION CONSULTANT STATUS lT1NH T~ : PRO.ECTlDI/ AN : HANOI PILOTUGKT METROLINE Sadlon Nhon- Hrml RalwaySlllllan
~ ! CHO~•" n ~ TV V.'..' THVC Hl~N DIJ ,., Technical Deeign
..
~ l!i 1-----+-----+----------------------------'"------i-------i.-------1 """' •v • , "" ~ "" •
1
c.TEC<lll().Wllt>.KJ4.'"'""-'"'""" - ru~N Ell/ONG s.J.TaoTHI THI01t:MTP HANOi Eoflll Nhfin. Ge H~ NOi
~~ SftTRASA
t ~ ~ HRB DESIGNEDBY Tll1£r~ : FORIMTl~eANv£ : DATEINGAY: TITlfrtNBANv£: NHUE RIVER CROSSING
ALENMIE rtN BANv£:
7 i!~ 2A 3MJ.11'11 2nd•ubm1111onotlllchn1ca1d-.,, A.K 6. Maurte 1>.Amaud A.K A1 31/01110 WQ'TSONGNHUI;:
~ !ti ~~ ::~ ~::.~ ~~ :::~: :::::: HANOI METROPOLITANRAILTRANSPORTPROJECTBOARD Cl£Cl<EDBYsoAT : "'~•-o-.i"""""""_""_,,_,.,._ __, DECK-SEGMENTSSA6-SB6-CONCOUT
~ ~ ~ 1--
1
-A--+s-u-11-110--+-F-im--.-------------------------1--A.-K_____._6_.. Ma-u-rie---i.P-.Amaud-----l BAN Dl/ANflUONGsATflOlHI HAN(ll 1----G_._M_a_un_·s----------1 =.::~~.,..-ror.,,,.p._w111oo.1111opt1or- BAN M,!..T cAU - PHAN flO~N SA6-SB6 - K~TcAU B~ TONG
...._~ ; ~ REVISION DATE DESCRIPTION DelllNEDl!Y IHlllEIJl!Y CllJEFOFDBD PROJECT01RECTOR1G1Ar.1rocD11AN: CH1EFoES1GNER1CHONH1eMTH1£r~: ..,"'""'""'"""-""'pd•"'•"""'""'"'"'"""'~...,.., DRA'MNGNO.lBANv£SO : I~._~_~__w_~_D01_.__N_~_Y_.___________~_1_~_NG_s_~_~_1__________.~™'-~E----~D--r ___._00_1_11i11_11ET__E.._______________________________._A_la_in__B~_ch__e~_a_u_____________________.____P_._Am__a_ud_________.__.....__~_. m_•""""__•_"-__••_o1no__'_...,__,.,_..,__,.._"_RB.______-'---------~P~l~C~-~T~E~C~-~G~D::....::0~-~'li/V.:....:.~0~-J.=..::0~4--1~8~3~1~6~-~B:..._.i.....:2~A~
v- J_~ SLOPE 1%
f)(ld6c1%
~-~~
0 ( ~ '21 .1_--,j -.- .q '<T 8
~u j ~ .. J;ir ~ <l: _ <l<' -4 ~ <1
~+----+~~,~,,_~=_:""_-_-_-_-_-_-_-_----+~----------~~-----~~-~;.,---'=-~ -:- DETAIL1 ~
CHI Tlt:"f 1 ..Q/
(D~/
4 - .:J__ 4
v ,• '4 ' 548 1463
.~~----1 ~
B
-;~~ -L - <I --1.--.....~c.i...------____. -
~ -~I j.500 .4
.! 4
4
<I.A._•""' s-4 ~ v • ~
~-~___.--------+---------+--~-------------------+-~
1000
I
1289 493 I
HALF SECTION A-A
NO'A MAT CATA-A
SCALE: 1/20
ti' LS:1/2D
5085
2303
-..-------------------------------------------+I
I
I DECKAXIS
r TIM 1<£T cAU NHJP
~~----------------~--------~----------+
I 1000 I 1289 I 532 I
VIEWC-C
G6C NHlN C-C
SCALE: 1/20
TI' Lf;::1/20
880 I 1384
I
SA6
SBB
I ,,,-------
t ' I I I I I I I I I lilfui'
SA7
SB7
SAS
SB8
-------.... I
~ 11 1 1 11 11 1~I 1 ~~~~1JNI I1IIIf [I 1I1
MAT BANG CH[NH
SCALE : 1/500
ti' LS: 1/500
L!--......~·~·_._.__.·_-_.__-_-·___,f__• _ ·_ 4_·_._4_·_·_.__!_LJI "I "I I
I ~ ~ I
I
3000
SECTION B-B
MAT CAT B-B
•SCALE : 1/20
Ti'LS:1/2D
548
I I
1485
I
~~.-----------.---.......----------11
. ·.
'' .
I
I
I
I
I
I
I
I
I
I
I
I
I
I
I
I
I
I
I
I
I
I
- BOTTOM BLISTER TYPE 1 I
BOTIUM BLISTERTYPE I
SEE DWG. NO. - PIC-TEC-GiDO-WVO-J00-18330.S
XEM BAN V£ SO- PIC-TEC-GOO: 00-18331H3
I
I
j
Hi-~ !!Lllt ' I
~j_jj_ DETAIL-1
CHI Tl~T-1
SCALE: 115
ti' LS:l/5
I
I
I
~ DECKAXIS
I TIM K£T cAU NHIP
<I ~· - I
I
I ..-- - 
........._,
~,_____...__..._l_____._____________________---11
~ 1,___54_8~~1~~~-1~~3~~~~1
HALF SECTION D-D
NliA MAT CAT D-D
SCALE : 1/20
ti' LS:1/2D
NOTES:-------------------~
GHI CHU:
1. ALL DIMENSIONS ARE IN MILLIMETERS.
1. TAT cAcAc K[CH THllO'c THEOElON VI MM.
2. CONCRETE GRADE FOR DECK: F'C=45 MPA (CYLINDRICAL)
2. ~ e£; TONGEl(SI Veil B.(N MAT cAUl'c=4S l,1pe CMAUTRl,I)
3. FOR GENERAL SEGMENt ARRANGEMEfff REFER TO DWG. NO.
3. El~ XEM BO TRI PH.'.N ElOAN CHUNG XIN XEM BAN VE SO
PIC-TEC-GAD-WVO-J00-18007-B TO PIC-TEC-GAD-WVO-J00-18009-B
~ ------+--------------+---------- CLIENT: II PROJECT IMPLEMENTATION CONSULTANT STATUST1NHT~: PRO.ECTl DllAN : HANOI PILOTUGKT METROLINE Sadlon Nhon-Hrml RalwaySlllllan
~.." ! 1 - - - + - - - - + - - - - - - - - - - - - - - - - - 1 - - - - + - - - - - I CHO EIAU nr: • TV VJN THVCHleN DIJ AN PIC-TEC<lllO-Wlt>.KJ4-1D17-8_:rADWe - Technicel Deeign ru~NEll/ONG sATOO THI THIDlt:MTP HANOi Eoflll Nhfin-Ge H~NOi
•• SYSTRA S.A
:.: n HRB oes1GNEDBY1rn1£r~ : FORJMn~BANv£ : DATEI NGAY: 1ru1n::NBANv£: NHUE RIVER cRoss1NG
ALENMIETtNBANv£:
i ~i 2A 3MJ.11'11 2nd•ubml11lonoflllchnlcald-.,, A.K G. Maurte P. Amaud A.K A1 31/01/10 WQ'TSONGNHUI;:
g ! ti i--1=c --+2M1="-'11t1"'"0'-+""'u=oc1a·111c1=------------+A."'K"'----FG."'Ma=u=rte-+P""'. Amaud==--i HANOI METROPOLITAN RAIL TRANSPORT PROJECT BOARD Cl£Cl<EDBYsoAT : "'~"-'II"""""'"_""_,,_,.,._ __, DECK-SEGMENTS SA7-SB7 - CONC OUT
~ ~ ~ ~= ::~ ~::= ~~ :::~: :::: BANDl,l'ANflUONGsATDOlHIHAN(ll 1---G_._M_a_un_·s.,....---....,......,....-1 =.::~~.,..-ror.,,,.p._-...111opt1or- BANM,!..TcAU - PHAN tlO~NSA7-SB7 - K~TcAU B~ TONG
hl ~ ',!! PROJECT DIRECTOR1GIAMroe DJAN : CHIEFDESIGNER1CHOlfileM TH1£r ~ : ..,"'. ..""'"• ._""'Pd•..,••,.,,""'"'"''"'"·~....,.., DRA'MNGNO.1BANv£ so : I~ ~ i ~~ ~ NO?~:~~:O, ~r :ml!!" =~~.: AlainB'9chereau P. Amaud """ 00·m•""'"•"-••o!not..,.,.,..,,.."RB. PIC-TEC-GDO-WVO-J04-18317-B 2A~....__...___.___..______________.....___...___....___.._________________.________________.__________.________________.___________________......___,
DETAIL 1
CHIT1£T1
SLOPE 1%
ElOd6C 1%
B
5085 SYMMETRY
t--_5_3_2____88_0____,______1_3_84___----<l'll X(ING -----$
'. ·, .
._ 548
I
/I
' ~ <: 55
-~
... " _ ~
<f A -I~
' . '
I
1485
· ~ ; L -
~-~---t--------+---------+---~0~_._:1_._soo_"_-~.·1__~_·_-_'_..,_·_· _·__·...,.· ~~
1000
I
1289 410 I
I
HALF SECTION A-A
NO'A MAT CAT A-A
SCALE: 1/20
TYLS:1/20
5085
2325
B
-.-----------.----------.-------,--------.------------1I
I
I DECKAXIS
r--TIM 1<£T cAu NHIP
_.________.__________._____._______.___________,
I 1000 I 1289 I 532 I
VIEWC-C
GOC NHlN C-C
SCALE: 1120
TYLS:1/20
880 I 1384
I
t''' '' '''' 'I~' IIliP15 I
I I I ['<4 I I @ l I I I I , , ' -=-:
, §e& SB8
I
SA7
SB7
~
SA8
SB8
SA9
SB9
---...
tt::YPLAN
MAT BANG CH[NH
I
SCALE : 1/500
TY LI;:: 1/500
I ~ ·~" . · 4• • , .. , • • • ~ : " ~ Ji'-----~. ~<>l------1-~.......~~~.......~~~~.......~~~~~~---t-~ ~ i
I
I
-tr~ I
/Lllt t I
I I 3000 I
~_ij__ DETAIL -1
CHI TIET-1
SCALE: 1/5
TYLl;:1/5
(~
n1 548
I
SECTION B-B
MAT CAT B-80
SCALE : 1/20
TY LS:1/20
1499
I
~--------r------..---------------1
I
" '
.'
.......,
I
I
- BOTIOM BLISTER TYPE 1 I
BOTTOM BLISTERTYPE 1
SEE DWG. NO. - PIC-TEC-G,DO:WVO-J00-18330-8
XEM BANv£ s0- PIC-TEC-000: 00-1833().a
I'--DECK AXIS
I TIM KtfcAu NHIP
~ I
I
i
~ I 548 I 1485
HALF SECTION D-D
NO'A MAT CAT D-D
SCALE: 1/20
TYLl;:1/20
I
NOTES:-------------------~
GHI CHU:
1. ALL DIMENSIONS ARE IN MILLIMETERS.
1. TAT cAcAc K[CH THllO'c THEO ElON VI MM.
2. CONCRETE GRADE FOR DECK: F'C=45 MPA (CYLINDRICAL)
2. ~ ee TONG El(SI Veil e.(N MAT cA.ul'o=4I; lApe CMAU TRl,I)
3. FOR GENERAL SEGMENt ARRANGEMEfff REFER TO DWG. NO.
3. El£XEM BO TRI PHAN ElOAN CHUNG XIN XEM BAN VE SO
PIC-TEC-GAD-WVO-J00-18007-B TO PIC-TEC-GAD-WVO-JIJ0.18009-B
~ o----+----+--------------+---------- CLIENT: II PROJECT IMPLEMENTATION CONSULTANT STATUST1NHT~: PRO.ECTl Dll AN : HANOI PILOTUGKT METROLINE Sadlon Nhon -Hrml RalwaySlllllan
:i:.." ! 1 - - - + - - - - + - - - - - - - - - - - - - - - - - 1 - - - - - + - - - - I CHO EIAU nr: • TV VJN THVC Hl~NDIJ AN PIC-TEC<lllO-Wllt>.KJ4.1D1H_:rADWe - Technicel Deeign ru~NEll/ONG sAT00 THITHIDlt:MTPHANOi Eoflll Nhfin. Ge H~NOi
•• SYSTRA S.A
:.: n HRB oes1GNEDBY1rn1£r~ : FORJMn~BANv£: DATEINGAY: 1ru1n::NBANv£: NHUE RIVER cRoss1NG
ALENMIETtN BANv£:
i ~i 2A 3MJ.11'11 2nd•ubml11lonoflllchnlcald-.,, A.K G. Maurte P. Amaud A.K A1 31/01/10 WQ'TSONGNHUI;:
g ! ti ......_1"'"c --+2M1="-'11t1"'"0'--+""u=oc1a·111c1=------------+A."'K"'----FG."'Ma=u=rte-+P""'. Amaud==--i HANOI METROPOLITAN RAIL TRANSPORT PROJECT BOARD Cl£Cl<EDBYsoAT: n.~•-'11"""""""_""_,,_,.,._ __, DECK-SEGMENTS SA8-SB8 - CONC OUT
~ ~ ~ ~= ::~ ~::= ~~ :::~: :::: BANDl,l'ANflUONGsATDOTHIHAN(ll ......__G_._M_a_un_·8
.,....-....,......,....-1 =.::~~.,..-ror.,,,.p._-...111opt1or- BANM,!..TcAU - PHAN tlO~NSA8-SB8 - K~TcAU B~ TONG
hl ~ ",!! PROJECTDIRECTOR1GIANroe DI/AN : CHIEF DESIGNER1CHONH1eM TH1£r ~ : ..,"'. ..""""• ._""'Pd•..,••,.,,""'"'"''"'"·~....,.., ORA'MNGNO.lBANv£ so : I~ ~ i ~~ ~ NQ?~:~~:01 ~r :ml!f =~~llll Alain B'9chereau P.Amaud """ 00·m•""""•"-••olnot..,.,.,..,,..."RB. PIC-TEC-GDO-WVO-J04-18318-B 2A~..__...___.___..._______________.....___...___..___.._________________.________________.__________._______________.._____________________.____,
B
;.,_~ L ' .....,_I_.cJ..~---------_; -
~<l . ·l . f?PO . l<f .. ., 4 <l "~ ~ ~
~~~+-~~~~~--+~~~~~~~~-+-~~--~';____.,~,;__-~A.___~_;_~---......._j-~
1000
I
1289 452 I
HALF SECTION A-A
NO'A MAT CAT A-A
SCALE: 1/20
Ti'Ll;.:1/20
5085
2343
B
~ ~-------------------~-----------------!
I
I
I r-DECKAXIS
r TIM K£T cAu NHIP
~...._______.________....__ _ _....______.________--+
I 1000 I 1289 I 532 I
VIEWC-C
GOC NHlN C-C
SCALE: 1/20
Ti' Li1::112D
880 I 1384
I
.......I1Jw=·.·~~~~~ ..I IIr,......MAT BANG CHiNH
SA8
SBB
,,,-------
SA9
SB9
I ~ ~: : . . . " . " A • 4 4 ~ • ' ~ I
1§1 ~~ I
11 -· J.....l-1~ -----!-----------+-~~~
I
I
../~:
.4 • '
3000
SECTION B-B
MAT CAT B-B
I
0
SCALE : 1120
Ti' Ll;:112D
548
I
1503
I
~ ~-. ~-~--~--------------11
" .
'.A
I
I
I
'· . ~DECKAXIS
I TIM K£T cAu NHIP
·. ~ I
~~....,.,-' =-...___._..,,.,,::--_.___________I
~ 548 1499 :
HALF SECTION D-D
NO'A MAT CAT D-D
SCALE : 1120
rt Ll~:1/20
SCALE : 11500
Ti' LI;: 1/50D
I
I
j
Hi- ~I !;_ill_ I I
~_ijj_ DETAIL-1
CHI Tli;T-1
SCALE: 1/5
Ti'Li;:115
NOTES:~~~~~~~~~~~~~~~~~~~~
GHI CHU:
1. ALL DIMENSIONS ARE IN MILLIMETERS.
1. TAT cAcAc K[CH THllO'c THEOElONVI MM.
2. CONCRETE GRADE FOR DECK: F'C=45 MPA (CYLINDRICAL)
2. ~ ee: TONGEl(SI Veil e.(N MAT cAUl'o=4S l,1pe CMAUTRl,I)
3. FOR GENERAL SEGMENt ARRANGEMEfff REFER TO DWG. NO.
3. Ele:XEM BO TRI PHAN ElOAN CHUNG XIN XEM BANVE SO
PIC-TEC-GAD-WVO-J00-18007-B TO PIC-TEC-GAD-WVO-J00-1800S-B
~ 1 t----+----+-------------_.____..._______. CLIENT: II PROJECTIMPLEMENTATIONOONSULTANT STATUSlT1NHT~: PRO.ECTl Dl/AN : HANOIPILOTUGKTMETROLINE SedlonNhon-HrmlRalwaySlllllan
~ ! CHO~•" n ~ TV V.'..' THVC Hl~N DIJ ,., Technical Deeign
..
~ l!; 1 - - - - + - - - - + - - - - - - - - - - - - - - - ' " - - - - - - - - i . - - - - - 1 """' 'Vo • "" ~ "" PIC.TEC<llX).Wllt>.KJ4.lal1H_:rADWe - ru~N Ell/ONG sATOO THI THIDlt:MTP HANOi Eoflll Nhfin. Ge H~ NOi
~~ SftTRASA
t ~ ~ HRB DESIGNEDBY Tll1£r~ : FORIMTl~eANv£: DATEINGAY: TITlfrtNBAN~ : NHUE RIVER CROSSING
ALENMIErtN BAN~:
7 i!~ 2A 3MJ.11'11 2nd•ubm1111onotlllchn1ca1d-.,, A.K 6 . Mauite 1>. Amaud A.K A1 31/01/10 WQ'TSONGNHUI;:
~ !ti ~~ ::~ ~::.~ ~~ :::~: :::::: HANOIMETROPOLITANRAILTRANSPORTPROJECTBOARD Cl£Cl<EDBYsoAT: "'~"-'II"""""'"_""_,,_,.,._ __, DECK-SEGMENTSSA9-SB9-CONCOUT
~ ~ ~ 1--1-A--+s-u-11-110--+-F-im--.------------.j..A.-K_ __._6_.. Ma-u-rie---i.P-.Amaud---l BANDl/ANflUONGsATDOlHIHAN(ll ..__G_._M_a_un_·s------1 =.::~~.,..-ror.,,,.p._w111oo.1111opt1or- BANM,!..TcAU - PHAN tlO~NSA9-SB9 - K~TcAU B~ TONG
...._~ ; ~ REVISION DATE DESCRIPTION DelllNEDl!Y IHlllEIJl!Y CllJEFOFDBD PROJECT01RECTOR1G1Ar.1rocD11AN: CH1EFoES1GNER1CHONH1eMTH1~~: ..,,.. ..""'"•"-""'pd•"'•"""'""'"'"'"""'~...,.., DRA'MNGNO.BAN~so: I~..._~_~__w_~_D01_.__N_~_Y_.______~_1_~_NG_s_~_~_1_ _ _ ___.~™1_~E--~D-r _ _._00_1_11i11_11ET_E.._________________._A_la_in_B~_ch_e~_a_u___________.___P_._Am_a_ud_____.__....._~_. m_•""""_•_"-_••_o1no_'_...,_,.,_..,_,..._"_RB.___..1-_ _ _ _~P~l~C~-~T~E~C~-~G~D::..::0~-~'li/V.:..:.~0~-J.=..::0~4--1~8~3~1~9~-~B:.._.i....:2~A~
~
::i:
'gi l!;
.. nt ~ ~7
i ~
! ! ti
~~~ ~ ',!!
~ n11.
4 .
.. ..'• .,j
.'
"". ' ... '
" .
' ..
,. 4·
.
.'. . 4
.• . '
.. ~' .
.'.
I
-~I
I
I
I
I
I
I
I
I
I
I
I
I
~ I
~
I
I
I
I
I
I
I
I
I
I
I
I
I
L..-.
SECTION A-A
M~1A&~1A-A
TYL1;':1/20
548
L.. _ _J ~726
DO
reN
---;n
548
SECTION C-C
MAT CAT C-C
• SCALE: 1120
Ti'LS:1/20
I~
Iv
I
I
l
I
I
I
I
~DECKAXIS
I TIM K£T cAu NHIP
I
i
I
CLIENT: IIt---+---+---------------+-----1----1-------l CHOEIAUnr: ,
2A 3MJ.1111 2nd .subml111lon ofl&dinlcaldea9'1
t---+---+---------------+-----1----1-------l
HRB
1C 2Mllltl0 u 1lld
18 ZW&"IO UPDATED
A.K . Arnaud
t-;;.;;..--t=~;.:.._+--""'====--------------4"A.::..:K::..__-f=::..::::::::...+.~Amaud=~ HANOI METROPOLITAN RAIL TRANSPORT PROJECT BOARD
KEYPLAN
MAT BANG CHiNH
• SCALE: 11250
TYL!;': 1/250
... ,.
2784 . ' '
'
"· .
- --~--
' '-
"' 
I
/


I
I
I
I
I
I
'-----"'-'-----=---s=E~C=-:T~~O~N:----B~~''---:-B~'~"~'":::·'~&J/_g~~~~~
M~T CAT B-B
I
I
I
/
/
/
/
/
/
/
/
PROJECT IMPLEMENTATION CONSULTANT
TV VJN THVC HISN DIJ AN
SYSTRAS.A
SCALE: 1120
T'l'LS:1/20
' '
' ' '
4
4
/ , , /
DETAIL 1
CHI Tl~T 1
SCALE: 1/20
TYLS:1/2D
ALENMIEITtN BAN'IE:
DESIGNED BYTll1£r~ :
A. K
/
/
' '''





I
I
I
I
I
I
I
I
I
I
I
/
/
I
/
/
FORIMTI~BAN v£ :
A1
STATUSlT1NHT~:
Technical Deeign
DATEINGAY:
31/01110
Cl£Cl<EDBYsoAT: n.~•-.-.i"""""'"_""_,,_,.,._ __,G. Mauris ~whol1or inportot.-foranyp,_w111oo.1111opr1or-
1A 3UJ1110 Fim-. A. K .Arnaud BAN DI/ANDUONG BAT DO lHIHAN(ll
DelllNEDl!Y IHlllEIJl!Y CllJEFOFDBD
PROJECT DIRECTORIGIANElOcDI/AN :
1-------,--...,.....,...-1 perm~~dHRB.
CHIEFDESIGNERI CHONHleM THI~ ~ : ..."'. ..""'"• ._ ph6pd . .... . ,.,, '""hlm ' "'"·~........
REVISION DATE DESCRIPTION
SC/ADO! NGA.Y NQI DUNG SO'A DOI 1111tr1E 1111.r C1!lNllillnETIE Alain B'9chereau P. Arnaud """bO,m•""'"•"-••<Dlot...,..,..,,..HRB.
NOTES: ~~~~~~~~~~~~~~~~~­
GHICHU:
1. ALL DIMENSIONS ARE IN MILLIMETERS.
1. TAT cA cAc KICH THl!Qc THEO DO'N Ill MM.
2. CONCRETE GRADE FOR DECK: F'C=45 MPA {CYLINDRICAL)
2. c.':P BS TONG DOI VOi BAN ~T cAU l'o=45 MP9- (MAIJ TRl,J
PRO.ECTI DI/ AN : HANOI PILOTUGKT METROLINE Sadlon Nhon- Hrml RalwaySlllllan
nJ~N WONG sAT00 THI THIDlt:MTPHANOi Eo911 Nh&i. Ge H~ NOi
TITlfl~NBANv£ : NHUE RIVER CROSSING
WQ'T SONG NHUI;:
DECK - BLISTER TYPE 1-2-3-0-6 - CONC OUT
BAN M.!<T cAU - BLISTER TYPE 1-2-3-5-6 - ~T cAU B~ TONG
DRA'MNGNO.BANv£ SO :
PIC-TEC-GDO-WVO-J04-18330-B 2A
~
~
'l!;
.. nt ~ ~7
i ~
! ! ti
~~~ ~ ',!!
~ n11.
2A 30oGl/11 2nd .subml111lon ofl&dinlcaldea9'1
SM'
7--
SA4
..,
j::
988
SECTION A-A
MAT CATA-A
548
728
• SCALE : 1/20
I
I
Ti' Ll;:1/20
. ~ ·-'---'---'--. ---:
~. I
'.
548
SECTION C-C
MATCATC-C
SCALE: 1/20
Ti' Lf;::1/20
CLIENT: IICHOEIAlmr:
•
HRB
KEYPLAN
MAT BANG cHrNH
SCALE: 11250
Ti'LI;: 1/250
~
"
~
402
~
lrDECKAXIS
r TIM K£T cAu NHIF'
PROJECT IMPLEMENTATION CONSULTANT
TV VJN THVC HleN DIJ AN
SYSTRAS.A
.'.
I
I
I
1C 2Mllltl0 u 1lld
18 ZW&"IO UPDATED
A.K . Arnaud
t-.:.;;.--t=~'-'=-+=~~-------------4"A.::..:K.:...__-4==~-".Amaud==-~ HANOI METROPOLITAN RAIL TRANSPORT PROJECT BOARD
1A 3UJ1110 Fim-.
REVISION DATE DESCRIPTION
SC/ADO! NGA.Y NQI DUNG SO'A DOI
A. K .Arnaud BAN DI/ANDUONG BAT DO lHIHAN(ll
DelllNEDl!Y IHlllEIJl!Y CllJEFOFDBD
1111tr1E 1111.r C1!lNllillnETIE
PROJECT DIRECTORIGIAMElOcD./AN :
Alain B'9chereau
/
/
SB4 SB4'
4
6
".
600
I
• I
. '  /
"·. /
', '>, .d . <l· ----~
/ '  _DETAIL 1
SECTION B-B CHITltf 1
MAT CAT B-B
SCALE: 1/20
/
/
/
/
/
/
TYLI0.:1/20
DETAIL 1
CHI Tli;:T 1
SCALE : 1/20
Ti'Lf;::1/20
ALENMIEITtN BAN'IE:
'
' ' ' ' 
/
/
/
/
/
/ /
' 


/
I
/
/
I
I



I
I
I
I
t
I
I
I
I
STATUSlT1NHT~:
Technical Deeign
DESIGNED BYTll1£r~ : FORIMTI~BAN v£ : DATEINGAY:
31/01110A. K
Cl£Cl<ED BYsoAT:
G. Mauris
CHIEFDESIGNERI CHONHleM TH1£r ~ :
P. Amaud
A1
ThLldlawl1111rru11tncti......-mi..t,~i:r~~
ii whole or in part orUlldfor anr p.,.,._wthcU lh9pricrwrillln
permiHionofHRS.
a.."'1nty khnng 0uqc ph6p•Cr dl.'la di.IOI mQIhlrtl tii:rc,.mOtsNr1i.r
- IJO,mO"'°"O "-••.en.t ....m ...ca'lo HRB.
NOTES: -----------------~
GHICHU:
1. ALL DIMENSIONS ARE IN MILLIMETERS.
1. TAT Cl Clc KICHTHl!Qc THEO DO'N Ill MM.
2. CONCRETE GRADE FOR DECK: F'C=45 MPA {CYLINDRICAL)
2. c.':P ai; TONG DOI VOi BAN ~T GAU l'o=45 MPll (MAu TRl,J
PRO.ECTI DI/ AN : HANOI PILOTUGKT METROLINE Sadlon Nhon- Hrml RalwaySlllllan
nJ~N WONG sAT00 THI THIDlt:MTP HANOi Eo911 Nh&i-Ge H~ NOi
TITlflrtNBAN~ : NHUE RIVER CROSSING
WQ'T SONG NHUI;:
DECK - BLISTER TYPE 4 - CONC OUT
BAN M.!<T cAU - BLISTER TYPE 4 - ~T cAU B~ TONG
DRA'MNGNO.BANv£ SO :
PIC-TEC-GDO-WVO-J04-18332-B 2A
~
~
;
'l!;
.. nt ~ ~7
i ~
! ! ti
~~~ ~ ',!!
~ n0..
15
~SAB'
tt-1 I I I I
I I WA<A l I I l I I I I I
~ '~
rr Hi KEYPLAN
MAT BANG cHrNH
SCALE: 11250
TI'LI;: 1/250
~1r---~~~~~~~~~~~~~----ji
I
I I I I
.
I
~
rn I
tt~
4 -
4
I I
1 ~DECKAXIS v-f----------------------<vrTIM K£T cAU NHIF'
t----+----+-------------_.____..._______. CLIENT:
1----+----+---------------'"---1------i.-----1 CHOEIAUnr:
2A 3MJ.1111 2nd .subml111lon ofl&dinlcaldea9'1 A. K 6 . Maurte ... Arnaud
1C 2Mllltl0 Uodatlld A. K 6 . Maurte ... Arnaud
1725
I
I~ I~~I 548 _1___10_99____,_I-4'--00-----'I
.. <l
'
..
•. ' . '
«'
, .
.
:__4'
"
SECTION A-A
MAT CAT A-A
SCALE: 1120
TI'Li;:1/20
1864
I
I
l!r
~~
400
-
-t------2 ·-1--4------- ---·---·-~!-·-1-
.r,. .....
<I <J .d.
~
•
~
.
.I, .<l
.,.
.J
' ..
HRB
1864 I 400
VIEW C-C [
1
-
GOC NHlN C-C
SCALE: 1120
TI' Ll;:1120
II
PROJECT IMPLEMENTATION CONSULTANT
TV VJN THVC Hl~N DIJ AN
SYSTRAS.A
18 ZW&'"IO UPDATED A. K a . Maurie ...Arnaud HANOIMETROPOLITAN RAILTRANSPORT PROJECT BOARD
1A 3UJ1110 Fim-.
REVISION OATE DESCRIPTION
SC/ADO! NGA.Y NQI DUNG SO'A DOI
A. K a . Maurie P.Amaud BAN DI/ANDUONG BAT DO lHIHAN(ll
DelllNEDl!Y IHlllEIJl!Y CllJEFOFDBD
PROJECT DIRECTORIGIANElOcD./AN :
1111tr1E 1111.r C1!lNllillnETIE Alain B'9chereau
. 4
·' . ' ' '
ALENMIEITtN BAN'IE:
DESIGNED BYTll1£r~ :
A. K
I 700 I
sTI
-
I 0
,l I ....I
.
J4 .. <l
. '
. .,· 4
VIEW B-B
GOC NHlN B-B
SCALE: 1/20
TILl;:1120
FORIMTI~BAN v£ :
A1
• .
. ..
STATUST1NH T~:
Technical Deeign
DATEINGAY:
31/01110
Cl£Cl<EDBYsoAT : n.~•-.-.i"""""""_""_,,_,.,._ __,G. Mauris ~whol1or in por1..-.-roranyp,_w111oo.1111opr1or-
1------------1 perm~~dHRB.
CHIEFDESIGNERICHOlfileM THI~ ~ : ..."'. ..""""•._....pd . .....,.,, '""hlm ' "'"· ~........
P.Arnaud """bO,m•""""•"-••.enot...,..,..,,..HRB.
I
~SBB'
I WffA I I ..JL...
p:::
_[_
~ NOTES: ~~~~~~~~~~~~~~~~~
GHICHU:
1. ALL DIMENSIONS ARE IN MILLIMETERS.
1. TAT cA. cA.c KICHTHl!Qc THEO DO'N Ill MM.
2. CONCRETE GRADE FOR DECK: F'C=45 MPA {CYLINDRICAL)
2. c.':P ai; TONG DOI VOi BAN ~T cAU 1'1:>=45 MP9- (MAIJ TRl,ll
PRO.ECTI DI/ AN : HANOI PILOTUGKT METROLINE Sadlon Nhon- Hrml RalwaySlllllan
ru~N WONG sAT00 THI THIDlt:MTP HANOi Eo911 Nh&i-Ge H~ NOi
TITlflrtNBANvE: NHUE RIVER CROSSING
WQ'T SONG NHUI;:
DECK - DEVIATOR TYPE 1 - CONC OUT
BAN M.!<T cAU - LO~I BO CHUY~N HU'O'NG 1 - K~T cAU B~ T( NG
ORA'MNGNO.BANvE so: IPIC-TEC-GDO-WVO-J04-18350-B 2A
~
;
'l!;
.. nt ~ ~7
i ~
! ! ti
~~~
~
~ ',!!
0..
n
I -813
I
I
.J
1536
SECTION A-A
MAT CAT A-A
• SCALE: 1120
'r1' LS:1/20
2701
1861
2674
KEYPLAN
MAT BANG CHiNH
• SCALE: 11250
Ti'LS: 1/250
v-DECKAXIS
I TIM K£T cAu NHIP
roECKAXIS
·---·---·-------rfM~Hl_P__ .
L - - . . J . . . . - - L - - - - - - - - - - - - - - - - 4 - - - - - - - - - l f - - - - - I CLIENT:
L--..J---L---------------+----1------li------I CHOEIAUnr:
2A 3MJ.1111 2nd .subml111lon ofl&dinlcaldea9'1 A. K
VIEWC-C
GOC NHiN C-C
SCALE: 1/20
Ti'LS:11211
HRB
1C 2Mllltl0 u 1lld
18 ZW&"IO UPDATED
A. K
L-~~~~~=~------------.+::A.::..:K'----F::..:::::::.:...+.:..:..:.:=-~ HANOI METROPOLITAN RAIL TRANSPORT PROJECT BOARD
1A 3UJ1110 Fim-.
REVISION OATE
SC/ADO! NGA.Y
DESCRIPTION
NQI CUNG SO'A DOI
A. K BAN DI/ANDUONG BAT DO lHIHAN(ll
DelllNEDl!Y
1111trK£
IH!llEDl!Y
1111.r
II
PROJECT IMPLEMENTATION CONSULTANT
TV VJN THVC Hl~N DIJ AN
SYSTRAS.A
PROJECT DIRECTORIGIANElOcD./AN :
Alain B'9chereau
4
3000
VIEW 8-8
GOC NHlN 8-B
SCALE: 1/20
Ti'Ll;:1/2D
ALENMIEITtN BAN'IE:
~ ".
·,
' .
DESIGNED BYTll1£r~ : FORIMTI~BAN v£ :
A. K A1
STATUSlT1NHT~:
Technical Deeign
DATEI NGAY:
31/01110
NOTES: ~~~~~~~~~~~~~~~~~---,
GHICHU:
1. ALL DIMENSIONS ARE IN MILLIMETERS.
1. TAT cA. cA.c KICH THl!Qc THEO DO'N Ill MM.
2. CONCRETE GRADE FOR DECK: F'C=45 MPA {CYLINDRICAL)
2. c.':P BS TONG DO"I VOi BAN ~T cAU 1'1:>=45 Mi- (MAIJ TRl,J
PRO.ECTI DI/AN : HANOI PILOTUGKT METROLINE Sadlon Nhon- Hrml RalwaySlllllan
ru~N WONG sAT00 THI THIDlt:MTP HANOi Eo911 Nh&i-Ge H~ NOi
TITlfll'tNBANv£: NHUE RIVER CROSSING
WQ'T SONG NHUI;:
DECK - BLISTER TYPE 7 - CONC OUT
BAN M.!<T cAU - BLISTER TYPE 7 - ~T cAU B~ TONG
ORA'MNGNO.BAN'IE SO :
PIC-TEC-GDO-WVO-J04-18355-B 2A
411------+--__,0D9 0
I0D4f-----+----l.IH--ll
OETAIL-1
CHITla-1
f---------+----< 001 0
ID05>-----l--h>"I
I006
ELEVATION VIEW
MATDO'NG
!!CALE: 1150
ri'LS: 111il
CORING TUBE
ONG LAY LOI
N=6 (NB OF OVERLAPS}
N=6 (SL MOI NOi CHONG)
IN THIS SKETCHE AS EXAMPLE
TRONG HlNH ~ LA VI Dl,J
~ ALTERNATE OVERLAPS
MOI NOi CHONG SO LE
DETAIL AT PILE BOTTOM
CHI Tl~T TAI DAY COCSCALE : 1120 •
SECTION -A
MAT CAT-A
SCALE: 1110
TYLE: 1110
APPLICABLE FOR CONFINING ZONE
APDUNGCHOVONGH~NCH~
75
PLASTIC SPACERS@1200 ~
fl G 200 (
35
DETAIL-1
CHI Tli;T-1
SCALE: 1110
TY LS: 1110
BAR N° BARS/SPACING
MARK SO THANH/KHOANG CACH
<111nh d!u CONFINING ZONE 014@75
VUNG HAN CH!::
001
LAPPING AREA 014@225
01i;N TfCH NOi CHONG
REGULAR ZONE 014@225
VUNG THONG THIJONG
002 7-025
003 6-025
004
(N-1)x13 -025, (N: number of overlaps)
(N-1}x13 -025, (N: s6 IAn tn:lng kh6'p}
005 7-025
006 6-025
SECTION -B
MAT CAT-B
SCALE: 1/10
TY LE : 1110
APPLICABLE FOR REGULAR ZONE
AP DUNG CHO VONG THONG THU'ONG
SECTION VIEW-TUBES {ALL PILES EQUIPPED)
MAT CAT NGANG-CAC ONG (TRANG B! DOI VOi TAT CA cAc COC)
SCALE: 1/10
TY LE: 1110
NOTES:~----------------~
GHICHU:
1. REINFORCEMENTYIELD STRENGTH: FY=420 MPA.
1. Cl/ONG El() CHAY COA COT THi;P fu=.420 Mpa.
2. CONCRETE COVER: C=75 MM.T'i'LI;:: 1/20
la 2. LdPei; TONG eAovi; c=75 mm009 018@2000
~1----.---.~-.--~~~~~~~---,.~---.~--.--~--.-~~~~~~~~~r==-~~~~~~~----.-,,~~=-~~..----=""~~----r-~....,....-----=~=========================-~
t---+----+-------------+----..___ __..___. CLIENT: • PROJECT IMPLEMENTATIONCONSULTANT FILE NAA1ElTtNBAN/£: SCALETYLE: STAlUSTfNH~G: PROJECT CVAN: HANOIPILOTLIGHT METRO LINE Sedian Nhon. HantiRailwayS1atial
~ I!! CH0 - '"11 1U '""' 1Hl,ICHl~N 01,1 •·· Teclmical Design,.. ::: _ _ _ _ _ _ _ _ _ _ _ _ _ _ _ _ _ _ _ _ _......__ ___.._ ___. """' : • """ ~ "" PIC-TCC<;R~l11"'L»>DWG TIJY£NeooNGsATElOTHITHIfll~M TPHANQI Elatn N~n. GaHi .....
~ ~ I : ::: ~:::m1111onoflllchnlcaidaolgn ~:~ SYSTRAS.A DESIGNEDBYTHli;rK£: FORMATKHO BANVE: DAlENGAY: Tm.ETtNBANl/E: NHUE RIVER CROSSING ...,
11
1~ 8 10 01/1~0 UPDAJED A.K HRB A. K A1 19/02/10 VU'QTSONGNHUI;:
w .!:
F % 1C ~8110 Updatad A K CHECKED BYSllf.T
!I $i
18
2Ml&'ID UPO>;JED .._·. K HANOIMETROPOUTANRAILTRANSPORT PROJECTBOARD : Thil-gmUllnotbo •- 1..,ed.- « - - - PILES- P151-P154- REINFm g G Maurts 1n wtio1ea hP11rt orul8dfor •nrprupmewllhoul._prkr'Mltsl
~ i ~ t--1-A-+1Ml211--0 -+-F-lm--..-----------..._.._-. K--~---4----l BANDlfANllWNGsA.TllOTHlllANQI ,____· ______. pormllllonot HRll. CQC·P151·P154·00T T1-liOP
~L-~-~..........~-~_:_~.._~_~_~........_ _ _ _ _N~-~-~_:_~_~f!Ol-----~~-~-~-~~-1_~--1.g:_;~_~_~_~..______________....1....~-a~_:_~~-l~-~:OO_raa_'G_uiJM_a_~_o_v~_: ______....L.cH_IE-FrEl_P_~~-NE_:_~-N-Hl_~_™_l~-~_:__.__:_:_~nkt-N_~_-:.:._r:;_~_u_i_~_-_~_':'.._"~-·-::;_.rn(<_pMn_t.y_.1...._DRAl'l1-~-N-O._eAN-ve~~~i=c~-T~E=C.=.....:-G=..:....:R~R~-'Jl/V.:..:....~O=--=-J~0~4~-~18~1~1~0~-=B:.._L..::3~A:...J
~
~
;
..t
i
~ii:
002>----+---t
~ t-------!003
UJ
----?
00 1
C)
UJ (!)
ts gN j!:
PLASTIC I CONCRETE
NHl,IA/Bl:TONG
SPACERS@1200
VONG Eli;M@1200
0 001
1 STEEL CORING TUBE
1 ONG THePLAY LOI
100/103
010
008
@12000
STEEL SONIC TUBE 50/53
Ong THl:P Sonic 50/53
STEEL SONIC TUBE 50153
Ong THeP Sonic 50/53
004>--------+tl--+--l------<I
~ (!)
:5 z
0 009 STEEL SONIC TUBE 50153
Ong THl:P Sonic 50/53
I!!
~
uw .!:
F %
!I $i
!;l 8
uB
=> 0
Cl j!:
UJ (!)
~ z
•:J
>
009
UJ(!)
zz
~Cl-
zO_z
Cl.(!)
{ ~·~
~
CHITl~T-1
~i
3"
2A
I I
I I
L _J
---r------1006
ELEVATION VIEW
MATEllrNG
21111r11
30KM/11
SCALE: 1/50
TYLI;': 1/50
Updatlld
2nd •ubml11lon oflllchnlcal daolgn
A.K
A.K
10 D1111r!D UPDATED A. K
004
N=5 (NB OF OVERLAPS)
N=5 (SL MOI NOi CHONG)
IN THIS SKETCHE AS EXAMPLE
TRONG HINH V~ LAVI Dl,J
PLASTIC I CONCRETE
NHIJA/B!: TONG
SPACERS@ 200
VONG Ell;'M@1200
0 001
0 009
HRB
SECTION A-A
MAT CATA-A
SCALE: 1/10
TY LI;': 1110
APPLICABLE FOR CONFINING ZONE
AP Dl)NG CHO VUNG H~N CHf:
SECTION B-B
MATCATB-B
' SCALE: 1/10
APPLICABLE FO:R0
REGULAR ZONE
AP Dl)NG CHO VUNG THONG THU'ONG
BAR
MARK
KYHIEU
THANH
COTTHl:P
001
002
003
004
005
006
009
•PROJECT IMPLEMENTATION CONSULTANT
Tl1 VAN THl,IC HleN DI,/ AN
FILE NAA1ElTtNBAN/£:
SYSTRAS.A
DESIGNED BYTH1£TK£:
A. K
SECTIONAL VIEW
~filEqAT
TY u; :1110
SHOWING TUBE (ALL PILES EQUIPPED)
ONG LO RA {TRANG Bl EJOI VO'I TAT CA cAc CQC)
CORING TUBE
<'.>NG LAY LOI
001 0 75
DETAIL AT PILE BOTTOM
CHI Tl~T TAI £JAY COC
SCALE: 1/20
TI' LE: 1120
N" BARS/SPACING
SO THANHIKHoANG cACH
CONFINING ZONE 018@75
VONG HANCHI:
LAPPING AREA 018@225
DIEN TlCH NOi CHONG
REGULAR ZONE 018@225
VONG THONG THU'ONG
12-032
12-032
~N-1)x24-032, (N: number ofoverlaps)
IH)i24-D32, (N: s61An tn:Jng khap)
12-032
12-032
025@ 1500 (FULL LENGTH)
SCALE TYLE:
FORMATKHO BAN VE:
A1
STAlUS TfNH~G :
Teclmical Design
DATENGAY:
19/02110
DETAIL -1-----~35
CHI Tl~T-1
SCALE : 1/10
TYLI;: 1/10
NOTES:------------------~
GHICHU:
1. REINFORCEMENTYIELD STRENGTH: FY=420 MPA.
1. Cl/ONG El() CHAY GOA COT THeP f=420 Mpa.
2. CONCRETE COVER: C=75 MM.
2. Ld P ei: TONG eAovi; c=75 mm
PROJECT DI,/AN: HANOI PILOTLIGHT METRO UNE SediDn Nhon•HantiRailwayS1ation
TIJY£NflOONG sATElOTHITHIfll~M TPHA NQI Elatn N~n · GaHi NOi
Tm.E TtNBANVE: NHUE RIVER CROSSING
VU'QT SONG NHUI;:
1C ~B/1D
18 2Ml&'ID
Updatad A . K
....._,""-.p;;;_;;;;;.;.;;- u""PDA=TED;...__ _ _ _ _ _ _ _ _ _-+A;..;;...;.;;.K_ _p;.;;;=-+'-'=;;;;;;...--l HANOI METROPOLITAN RAIL TRANSPORT PROJECT BOARD CHECKED BYSlll.T: Thil-D mu1tnotbo 1-1...ec1.-...---G. Maurts 1n wto1eahP11rtorul8dfor•nrprupmewllhoul:._prkr'Mltsl
PILES - P152-P153 - REINF
CQC • P152·P153- c0TTHl:P
1A 111m/1D
REVISION DATE
SlrAOOI Nal.Y
F1ro1 - . A.K BAN DI/AN allONG sA.raO THI HANQr
DESCRIPTION
NQI DUNGWAfJOI
IHIHl!BI
HIM!
CllllClllBI
IOI.!
PROJECTDIRECTORGIAMaocDI/AN:
Alain B~cheraau
,___ _ _ _ _ _ ___, parmlllllonotHRB.
CHIEF~IGNERCll) NHleMTH1£rK£:
P. Amaud
......My_..,.,._.......ng ..... ..,.. .... _rn(llpMnt.y
.... ~ ... - ......... ~t~YGnb6ncOoHRB.
DRAl'l1NGNO. BANV£SO:
PIC-TEC-GRR-WVO-J04-18113-B 3A
•
•
•••
u~~
.s
••Hn
"' 21/1B'11
"' """"''1D D1/11»10
1C
"""",.
""""1A
'""''"REVISION
"'"SO'AElOI ""y
""'"'"' A.K r..MauriB . Joing
2nd submission of lechnlcal daalgn A.K G.Maurls
-""""'
"""""" A.K "1.Meurls
-""""'
""'"'"'
A.K b.Meurls
-""""'
"""""" A.K ~.Meurls .... Arnaud
Flllll lssua A.K t3.Meurls
-""""'DESCRIPTION
-· ,,.,.,. (Hl'CflE!QI
NOi DUNG sO'AElOi
""" ..T ailrtil;llillil~~
97 L___J
- '--------'
-[@l - @) 007 §) §)
'-~ - . l' /
I
' /
I
I
' I
, ,;
'  I
$----
·'
,,
' : 'I
;II
 ! 
 I 
'~
,1 
~ I
-- _:::---
~ ~
/ ,,-- ~
I I
. .
' l
 I
'---: /~ ~
/-"
- -~ --.--~
'
' I
I
I'
', ',; I
 ! 

',"-...::-__~ I
c1
l.



$so
PLAN VIEW
MAT BANG
soSCALE: 1/20
TYLe:1120
CLIENT:
11
PROJECT IMPLEMENTATION CONSULTANT
a-io E>Au ru: nrvAN THl,fC Hli;:N DI/ AN
SYSTRAS.A
HRB
HANOI METROPOLITAN RAIL TRANSPORT PROJECT BOARD
BAN·~ AN oU'ONo sAroO THI HANQI
PROJECTDIRECTORIGINAeocDIJ AN :
Alain B~chereau
@l]
BAR MARK NG BARS/SPACING
ElANH DAU SO LLIQNG cAC TiiANH COT
' @l] THANH COT Tii~F TH~PIKHOANG cACH
"--' 001 30-D32(2x9@150+2x6@300)
'
' - @- 002 2x16-D32 @150
'·
sO--V
003 2x2x16-D18@300
004 4x5-D18 @300
I
I 005 2x2x7-D20 @300
I
/
8 006 2x2x4-D18 @600
/
/
-
D
007 2x2x2-D25 @600
2x16-D18 @300008
8
-007
s~
--
@L__J
' ' . SDI
,
- s-"I
/
I
/
/
@l]A
-NOTES:
GHI CHU:
1. REINFORCEMENT YIELD STRENGTH: FY=420 MPA.
1. Cll0NG E>0 CHAY GOA c0T TH~P fc=420 Mpa.
2. CONCRETE COVER: C=75 MM.
2. LdP ei: TONG Move: c=75 mm
FILE NAMEITtN BANv£ : SCALEITYLe : STATUSTfNHTR6NG: PROJECTIDIJAN : HANOI PILOT LIGHT METRO LINE Sedian Nhon •Hanci Railway Station
PIC-TEC-GRR-IHVOJ04-181:306_llADWG - Technical Design
Tuv£N SOONG sAT E>0 THI THI -E>li:M TP HA N()I Elofn N~n ·Ga Hil NOi
DESIGNED BYTHltrK£ : FORMATKHO BAN ve: DATEINGAY: TTTl.EITtNBANVE: NHUE RIVER CROSSING
A.K A1 19/02110 WQT SONG NHUe
CHECKEDBYsoAT:
PILE CAPS - P151-P154 - REINF - PLAN VIEWThis d'awilg must not be eilhlr IDMed, o:ipisd orOlharwiae rep'Ocluoed
G. Maurls In - er h pmrt er uled for •nr prupmewthoullho prkrwrlllln
pmnnllillon ol HRB. MO COC - P151-P154 -COT THl:P - ~T BANG
CHIEF CESIGNERICll) NHla,lTHl£T Ke : Mn vii My kh!lng 4JVC ~RI) d,lng - mol h"rlh lh)c, m(ll phln hrly DR.WING NO.I BAN~ SO :
I3AP.Amaud
kllln ~ mll kh!lng41VC..,Mngf"blngvllnbllncilll HRB.
PIC-TEC-GRR-WVO-J04-18130-B
~
~
"' I!!
~ ~
11
ui w .!:
F %
!I $i
!;l 8
~ uii: B
~
sD
I
os ~ '"'
~ ~
' ' '
"' 'A'
"I~ ~0~ c ~ ~
I/
I~  ~ ll--+-------9]
A _I
l I 
~
r./ -
z]/ / / 7
-'
.e.O3J...._______. _,/ "' / _.L /
' ' ' 'I I     I '-    I'
' ' ' "     
'J '
I
I '
I"""""
- '. '. ' '
I"""'L__J@ l_~
I ~ _)
®L__J
L__J® <§L....::::::.... 002 ...._______.
SECTION A-A
MAT CATA-A
FOR PIER STARTERS BARAND BOTTOM
CHO c:AC THANH aAlJ CUA TRU VA.£JliY
TRANSVERSE REINFORCEMENT SEE DWG. NO
COT THEP PHllONG NGANG XEM BAN v£SO
PIC-TEC-GRR-WVO-J04-18210-B TO
PIC-TEC-GRR-WV0-.104-18212.S
PIC-TEC-GRR-WVO-J04-1824G-B TO
PIC-TEC-GRR-WV0-J04-18242-8
FOR PILE STIRRUPS TRANSVERSE
CHO CHIEU NGANG QUAI CHlJ U CUA CQC
REINFORCEMENT SEE DWG. NO
BO 1R1 c0T TliEP XEM BAN v£SO
PIC-11=.1,;-GRR- '.':::~v '8113-B ~
/ /
/
/ 7
/
.....
'~
~
~
I/
I
' "''  '
""
L__J @)- ----
SCALE: 1/20
TY Li1::1120
/
/ / /
/ /
'~
~~
00L) ...._______.
"' ' ' ' '' .......... ..... ~
' '    1' I    
 ,, 
l~L
   
I
,@, ®
L__J
SECTION 8-8
MAT CAT B-B
SCALE: 1/20
ITLl;:1/20
sD
/
/
r~
· ~
~
' 
I '- '-I
-~"'"'~
0 ...._______.
s ~
9--
0]
(§) L__J
o----+----+----------------+----....___....____. Q.IENT:
o----+----+----------------+----....___....____. CHOflAuru:
•PROJECT IMPLEMENTATION CONSULTANT
Tl1 VAN THl,IC HleN DI,/ AN
FILE NAA1ElTtN e,l,i/£:
3" 21/11Y11 Upda111d
2A 3004'11 2nd aubml11lon at'lechnlcal dMlgn
SYSTRAS.A
DESIGNED BYTHli;rK£ :
A. K
A.K G.M1nnto LI. Jalng
HRBA . K n . Moulll D. Amoud
1C ~8110 Upda1ad
18 2Ml&'"!O UPDATED
1A 111m/10 Fl'"111a»
REVISION DATE DESCRIPTION
SlrAOOI Nal.Y NQI DUNGWAfJO!
A . K n . Moulll D. Amoud
A . K 1l. Mou111 ... Amoud HANOI METROPOLITAN RAIL TRANSPORT PROJECT BOARD
A . K ll. Moultl P. Amoud BAN DI/AN llWNG sA.Ta0 THI HA NQI
IHIHl!BI' CllllClllBI' l>&IJ"lllllill
PROJECTDIRECTORIGIAMaocDI/AN:
HIM! IOI.! otl1t11;M1111!rl! Alain B~cheraau
CHECKED BYSlll.T:
G. Maur1s
CHIEF ~IGNERCll) NHleMlll1£rKe:
P. Amaud
- NOTES:--------------------
GHICHU:
SCALE TYu;:
FORMATKHO BAN VE:
A1
STAlUS TfNH~G :
Teclmical Design
DAlENGAY:
19/02/10
Thil <Rwi'ID mUll:notbe eithlrlOlrled,<q>ied«otl'lll'Wile NP'Odiacl
ln wtdeah P11rtorul8dfor•nr prupmewllhoul:.. prlor'Mltsl
parmlllllonot HRB.
1. REINFORCEMENTYIELD STRENGTH: FY=420 MPA.
1. Cl/ONG El() CHAY COA COT THEP fu=.420 Mpa.
2. CONCRETE COVER: C=75 MM.
2. Ld P BE TONG eAoVE c=75 mm
PROJECT CVAN: HANOI PILOTLIGHT METRO LINE Sedian Nhon•HantiRailway S1atial
TIJY£N flOONG sAT00 THITHIfllEMTPHA NQI Elatn N~n · GaHi NOi
Tm.ETtNB,l,iVE: NHUE RIVER CROSSING
VU'QT SONG NHUI;:
PILE CAPS - P151-P154- REINF-SECTIONS
MO CQC- P151.f'154 • C0TTHIOP - MAT cAT
......My_..,.,._......."11 ..... ..,.. .... _m(llpMnt.y
DRAl'l1NGNO.' BANVEso: I.... ~ ... - .........~t.......b6ncOoHRB.
PIC-TEC-GRR-WVO-J04-18131-B 3A
•
•
•••
u~~
.s
••Hn
"'
"'1D
1C
,.
1A
REVISION
SO'AElOI
[6
'
[ s
/,
D
~
@l
&--- - -
---8
--(009)
I
,
[S /
~
21/1B'11
""'"'"'"""11 2nd submission of lechnlcal daalgn
D1/11»10
""""'""
"""" ""'"'"'
"""" """"'""
'""''" Flllll lssua
"'"
DESCRIPTION
""y NOi DUNG sCrA.ElOI
--- ---
t
---DOS ---001 003 010 010
I
-
/ I/
/
I
I
/ I
/ -- I /
T .
'
I
~ - - - - - - - -
-1 - - -
.
.
I
'
~ - / '
~
 
I
/ / I /
I
" " --
(§) @~ B
---
PLAN VIEW
MAT BANG
• SCALE : 1125
ijlt :1125
CLIENT:
11
PROJECT IMPLEMENTATION CONSULTANT
a-io E>Au ru: nrvAN THl,fC Hli;:N DI/ AN
A.K r..MauriB . Joing SYSTRAS.A
A.K G.Maurls
·""""' HRBA.K G.Meurls
·""""'A.K b.Meurls
·""""'A.K ~.Maurls .... Arnaud HANOI ME'TROPOUTAN RAIL TRANSPORT PROJECT BOARD
A.K G.Maurls
·""""' BAN·~ AN oU'ONo sAroO THI HA NQI
-· ..,.,. (Hl'CflE!QI
PROJECTDIRECTORIGINAeocDIJ AN :
"'" ..T ailrtil;Mllil~~ Alain B~chereau
t JDOB 004 J
c
/ / •

/~
D~
@l
BAR MARK N' BARS/SPACING
001 48-32@)150
~
001 72-D32@l150
- - - - ~
OOl 48-D32@l150
s~ 004 136-D18[2 x24@l3 00+ 2x44@l 300 I
005 44-D18(2x 2x6@l3 00+ 2x2 x5@l30 0I
(009)-- 005 2x30-D16 @1600
007 2x15-D18 @l600
008 2x2x12-D18 @1300
009 2x13-D25 @1300
010 42-032124@)300+18@l150]
011 72-032@1150
/
I
@) -
'
/ /
'
~'
-'
T
@l D
-NOTES:
GHI CHU:
1. REINFORCEMENT YIELD STRENGTH: FY=420 MPA.
1. Cll0NG E>0 CHAY GOA c0T TH~P fc=420 Mpa.
2. CONCRETE COVER: C=75 MM.
2. LdP ei: TONG Move: c=75 mm
FILE NAMEITtN aMIv£ : SCALEITYLe : STATUSTfNHTR6NG: PROJECTIDIJAN : HANOI PILOT LIGHT METRO LINE Sedian Nhon •Hanci RailwayStation
PIC-TEC-GRR-IHVOJ04-18141>6_l1ADWG - Technical Design
Tuv£N SOONG sAT E>0 THI THI -E>li:M TP HA N()I Elofn N~n ·Ga Hil NOi
DESIGNED BYTHltrK£ : FORMATKHO BAN ve: DATEINGAY: TTTl.El'ftNBANVE: NHUE RIVER CROSSING
A.K A1 19/02/10 WQT SONG NHUe
CHECKEDBYsoAT:
PILE CAPS - P152-P153 - REINF - PLAN VIEWThis d'awilg must not be eilhlr IDMed, o:ipi!lcl orOlharwiae rep'Ocluoed
G. Maurls In - er h pmrt ar uucl for •nr prupmaWlhoullho prkrwrlllln
pennllillon ol HRB. MO COC - P152-P153 -COT THl:P - ~T BANG
CHIEF CESIGNERCll) NHla,lTHl£'TK£ : Mn vii My kh!lng 4JVC ~RI) d,lng - mol h"rlh lh)c, m(ll phln hrly DR.WING NO.IBANVESO :
I3AP.Amaud
kllln ~ mll kh!lng41VC..,Mngf'blngvllnbllncilll HRB.
PIC-TEC-GRR-WVO-J04-18140-B
~ --- ~
FOR PIER$TARTER$ BARAND BOTTOM
@ 9CHO cM: "THANH llAU ct!A1RU VI. Ill('(
"TRANSVERSE REINFORCEMENT SEE DWG. NO
iC0r Tl1EP PHI/ONG NGANG Xl!!M !Wlv! SO
PIC-TE...._,RR-wvu..J04-1822CH! TO
-- I
PIC-TEC-GRR-WVO..J04-18224-B
PIC-TEC-GRR-WVO..J04-1823CH!TO
ePIC-TEC-GRR-WVO..J04-18234-a TO
~ 009
i 009 ~
II I I I I I I I I I I I ~
VHHY w ~ b I I I I I v I I I I I I I I I
r-- . . ';
~
--,, - - - - - -' - - - . - - ' - . 1__.-
'I'
"'
,. ;
'
0
r---
' ~ v
D005 005
!'--. 1__.-
r--- I  I I  I I I / / I I 1_..-
r-- 1__.-
t 19----  I  I I Ir--- I I --- --- I I / 1__.-~s [ ]
t'--._ ~ fo§ 1_,,-
[
r--  I   I I / I I I I 1__.-
~s ]8---~>+ >+~
"--- I _,,.
r---     I I I / / I I v
I I
I I   
 !'--. ,# ~ 1__.-
- @) ......... ::: : : : :~: : : :  "
,
-----
T_ -' ....:".  . . . . . . . . . . . . . . . . . . . . . . _ .
I I I I / ! I I / V I I 11 11 1 111 1 111 11 I I I I I I I I I I I I I I I I I I I I I I I I I I I I I II I
.________.@ " " "'
JUlujlil[l[ llUl lilllit [ ~llJlillliL
9 SECTION A-A 9
-- MAT CATA-A
.________.
•SCALE : 1125
tY 16 :1125
I
~9  ---9
~s
I I I I I I I f-1r/ '/ ,/ .;
I I I I I I I II /' /~ /~ I
-----
/ 7 7 7 7 7 7 7 ./ ./ ./ ./ ./ ./ ./ ./ ./ ./ ./ ./ ./ ./ I /
----
Os -----
-,, ,,
so~ ~
v
-----
v
r--- I  I I I I v
!'--. 1__.-
[ ]8- r--- I  I
--- --- I I I v ~s [ ]
t'--._ ·fo7) (oD7) 1__.-
!'--. I  I I I I v
[8 8 ]r--- v
r--- I  I I I I 1__.-
r--- ~ I 
'
v
9 ~
!' ,. ! ,. ,. !' ,. ,. ,. ,. !' ,. ,.
r I 1 r r r ' r I r r ;; r rrrrrrrrrr r !' I
I I I I 7 777 7 7 7 - j I I / I l l / I l l ! I I / I l l I I I I J ! I I I
s I I I I I I I II I ! ! l Il l VI I ~ I 1 l ! l / l ! l / 1 11 / / ! I l l / IJ ' I/ I I A I/ VI IYI I I I
~ Jill WITIIBL UIJL wrn1
'
011 002
SECTION B-8
- NOTES:
GHICHU:
MAT CAT B-B
1. REINFORCEMENTYIELD STRENGTH: FY=420 MPA.
1. Cl/ONG El() CHAY COA COT THi;P fu=.420 Mpa.
SCALE: 1125 2. CONCRETE COVER: C=75 MM.
!YI• :1125 2. Ld P ei; TONG BAovi; c=75 mm
Q.IENT:
•PROJECT IMPLEMENTATION CONSULTANT FILE NAA1ElTtNe,1,1/£: SCALETYLJ;: STAlUS TfNH~G : PROJECT CVAN: HANOIPILOTLIGHT METRO LINE Sedian Nhon •HantiRailway S1atial
I!! CHOflAu T1: T1 VAN THl,IC HleN DI,/ AN Teclmical Design
~
PIC-TEC-GRlt-Wv'OJD4-11141-B_»..DWG - TllY£NflOONG sAT00llilTHIfll~M TP HANQI Batn N~n · Ga Hi NOi
SYSTRAS.A
u 3" 21/11Y11 Upda111d A.K ll.Miwrto . Jalng
HRB
DESIGNED BYTH1£TK£: FORMAT KHO BAN VE: DAlENGAY: Tm.E~Ne,l,IVE : NHUE RIVER CROSSING
2A 3004'11 2nd aubml11lon at'lechnlcal dMlgn A.K n. Mowrto ... Arnaud
A. K A1 19/02110 VU'QT SONG NHUI;:
w .!:
F % 1C ~8110 Upda111d A.K n. Mowrto ... Arnaud CHECKED BYSlll.T: PILE CAPS - P152-P153- REINF-SECTIONS!I $i
18 2Ml&'IO UPDATED A.K ll. Miwrto ... Arnaud HANOI METROPOLITAN RAIL TRANSPORT PROJECT BOARD
Thil <Rwi'ID mUll:notbe eithlrlOlrled,<q>ied«otl'lll'Wile NP'Odiacl
!;l 8
BAN DI/AN llWNG sA.ra0 THI HA NQI
G. Maur1s ln wtdeah P11rtorul8dfor•nr prupmewllhoul:.. prlor'Mltsl
MO CQC- P152.f'153 • C0TTHIOP ·MAT cAT
u 1A 111m/10 Flr"111a» A.K ll. Mowrto P. Arnoud
parmlllllonot HRB.
REVISION DATE DESCRIPTION IHIHl!BI' CllllClllBI' l>&IHlllill
PROJECTDIRECTORGIAMaocDI/AN: CHIEF ~IGNERCll) NHleMlll1£rK£: ......My_..,.,._......."11 ..... ""'"""-'""'iHn'-Y DRAl'l1NGNO. BAN VESO:
I3AB SLrAOOI Nal.Y NQI DUNGWAfJOI HIM! IOI.! otl1t11;M1111!rl! Alain B~cheraau P. Amaud .... ~ ... - ......... ~t~YGnb6ncOoHRB.
PIC-TEC-GRR-WVO-J04-18141-B
~
~
~
•ii •ii
uI~~
.s
••
~ H
• n
v-
B
~
0 012 28-020
(Ol2SOmm
0 011
43-020
@l70mm
~
~
VIEW 1-1
GQC NHiN 1-1
SCALE: 1/50
TY LI;.: 1/50
----$
B
J1B----.$1J .
4-032 02B 2er,
[2
23-032
001 j
23-032 00
t---+--+---------------+---+---1----1 ~~ru:
"' 21/1B'11 A. K . MauriB •Joing
"' """11 2nd submission of lechnlcal daalgn
1D D1/11»10
v-
B
~
lil
"'~
0 012
0 011
HRB
+
~
~
~
VIEW2-2
GQC NHiN 2-2
SCALE: 1/50
Ti"LI;.: 1/50
PROJECT IMPLEMENTATION CONSULTANT
nrvAN THl,fC Hli;:N DI/ AN
SYSTRAS.A
1C
""""18
""""
Updated A. K . Ameud
1-~-<'=~+=u"°"=""~------------+A~.K~--+==-+-.~-=,'"-' HANOI ME'TROPOUTAN RAIL TRANSPORT PROJECT BOARD
1A 31/01/10
REVISION
"'"SO'AElOI ""y
Flllll lssua A. K .Arnaud BAN DI/AN DIJ'bNG sA.T£>0THI HANQI
DESCRIPTION
NOi DUNG sCrA.ElOI
IEIH!lllr CIEOO!lllr (Hl'CflE!QI
Hr!G: lni.T ailrtil;Mllil~IG:
PROJECTDIRECTORIGINAeocDIJ AN :
Alain B~chereau
4-032
6-032
----$
B
01D
l 1]1c----.$
I
02 r 2cr,
[2
001
002
8
~
FILE NAMEITtN aMIv£ :
PIC-TEC-GRR-IHVOJ04-18211>6_l1ADWG
DESIGNED BY THltTK£ :
A.K
CHECKEDBYsoAT:
G. Maurls
CHIEF CESIGNERICll) NHla,lTHl£TK£ :
P.Amaud
lil
"'~
SCALEITYLe :
FORMATKHO BAN ve:
A1
v- ~
o/-
~
0 012
0 011
STATUSTfNHTR6NG:
Technical Design
DATEINGAY:
31/01/10
This d'awilg must not be eilhlr IDMed, o:ipiecl orOlharwiae rep'Ocluoed
In - er h pmrt er uled for •nr prupmewthoullhll prkrwrlllln
pmnnllillon ol HRB.
017 l5-032
(11300
4-032
4-032
~
~
~
~
SECTION 3-3
M~~L~~ri3-3
Ti'LI;.: 1/50
~ ----$
01[ l
r2~
~I [2
I 110
1]
----.$
01B l
02B r
lil
"'~
001
002
8
~
NOTES:---------------
GHI CHI.I:
1. REINFORCEMENT YIELD STRENGTH: FY=420 MPA.
1. CUONG £>0 CHAY COA COT TH!:P fc=420 Mpa.
2. CONCRETE COVER: C=50 MM.
2. LdP ee TONG ~ ve: c=so mm
PROJECTID1JAN : HANOI PILOT LIGHT METRO LINE Sedian Nhon •Hanci RailwayStation
Tuv£N SOONG sAT E>0 THI THI -E>li:M TP HA N()I Elofn N~n ·Ga Hil NOi
mLEl~NBANt, NHUE RIVER CROSSING
WQT SONG NHUe
DR.WING NO.IBANVESO :
PIERS - P151 - REINF
lRIJ - P151 - COT THl:P
PIC-TEC-GRR-WVO-J04-18210-B 3A
~
~
2 •ii •ii
uI~~
.s
••
~ H
• n
----~-~-:::-:::-:::-:::-~·r-
SECTION A-A
MAT CATA-A
SCALE: 1/10
T'i'LI;:: 1/10
002
0020 012
SECTION B-B
MATCATB-B
SCALE: 1/10
Ti' LI;.: 1/10
1
I
I
~J
I
I
I
t---+---+---------------+----1----1------< CLIENT:
t---+---+---------------+----1----1------< a-iOElAuru:
"' 21/1B'11 Updated A. K . MauriB •Joing
"' """11 2nd submission of lechnlcal daalgn A. K . Maurls . Arnaud
1D D1/11»10 HRB
1C
""""18
""""
Updated A. K .Ameud
t-=-+==-+~,,.,=...,~-------------+A~.~K---1===_,_~.-=~,---< HANOI METROPOLITAN RAIL TRANSPORT PROJECT BOARD
1A 31/01/10
REVISION
"'"SO'AElOI ""y DESCRIPTION
NOi DUNG sCrAElOI
A. K .Ameud BAN DI/AN DllbNG sA.To0THI HANQI
IEIH!lllr CIEOO!lllr (Hl'CflE!QI
Hr!G: lni.T ailrtil;Mllil~IG:
SECTION C-C
MATCATC-C
SCALE: 1110
TYLI;:: 1110
SECTION D-D
MATCATD-D
SCALE: 1/10
Ti" LI;.: 1/10
PROJECT IMPLEMENTATION CONSULTANT
nrvAN THl,fC Hli;:N DI/ AN
SYSTRAS.A
PROJECTDIRECTORIGINAeocDIJ AN :
Alain B~chereau
FILE NAMEITtN aMIv£ :
PIC-TEC-GRR-IHVOJGl-18211-B_llADWG
DESIGNED BYTHltrK£ :
A.K
CHECKEDBYsoAT:
G. Maurls
CHIEF CESIGNERICll) NHla,lTHl£TKe :
P.Amaud
SCALEITYLe :
FORMATKHO BAN ve:
A1
STATUSTfNHTR6NG:
Technical Design
DATEINGAY:
31/01/10
This d'awilg must not be eilhlr IDMed, o:ipi!lcl orOlharwiae rep'Ocluoed
In - er h pmrt ar uucl for •nr prupmaWlhoullho prkrwrlllln
pennllillon ol HRB.
0110
SECTION E-E
MAT CAT E-E
SCALE: 1/10
TYLS: 1110
SECTION F-F
MAT CAT F-F
SCALE: 1/10
TYLS: 1/10
NOTES:
GHI CHI.I:
001 J
002 l
1. REINFORCEMENT YIELD STRENGTH: FY=420 MPA.
1. CUONG £>0 CHAY COA COT TH!:P fc=420 Mpa.
2. CONCRETE COVER: C=50 MM.
2. LdP ee TONG ~ ve: c=5D mm
PROJECTID1JAN : HANOI PILOT LIGHT METRO LINE Sedian Nhon •Hanci RailwayStation
Tuv£N SOONG sAT E>0 THI THI -E>li:M TP HA N()I Elofn N~n ·Ga Hil NOi
mLEl~NBANlt: NHUE RIVER CROSSING
WQT SONG NHUe
DR.WING NO.IBAN~ SO :
PIERS - P151 - REINF
lRIJ - P151 - COT THl:P
PIC-TEC-GRR-WVO-J04-18211-B 3A
c c
Total Lengths and Weights
No. 1~fNboar No. l01Nb~_r,~ Total
Number of members 1
Boe Type Total Shape Bend Boe Type Shape Bend
mark ocd of ineo(h No
Length [ode Type Dimensions Shape R"" mark ocd of 1n eo(h No
Length [ode Type Dimensions Shape R"" Type T Type R BENDING DIAMETERS (mm)
size m'mb m~mb s12e memb memb
mm mm mm a mm mm mm a Diamders 6 8 10 12 14 16 18 20 22 25 28 32 36 40
Total Weight Total Total Weight Total
~ ~
Diameter Length per unit Weight Length per unit Weight Hooks
36 48 60 72 84 96 108 120 m 150 224 256 288 320
001 D32 1 23 23 10690 11 1 A=10210 B=SS6 017 D32 1 5 5 4630 11 1 A=103S B=3700 lml (kg/m) lkg) lml (kg/ml lkg) D
[Type 11
Frames
24 32 40 48 56 64 108 120 132 150 224 256 288 320
6 0 0.222 0 00 IType 2]
~
8 0 0.395 0.00
Hooks
0 0 0 0 0 0 0 0 0 0 0 0 0 0
018 D32 1 3 3 3360 11 1 A=1419 8=2046 R
[Type 11
10 0 0.617 0 00 Frames
0 0 0 0 0 0 0 0 0 0 0 0 0 0ITvne 2)
~
12 0 0.888 0.00
QI[ D32 1 4 4 4960 11 1 A=1419 8=3646 14 0 1210 0.00
16 0 1.580 0 00
18 0 2.000 0.00 BAR DIMENSIONS
OID D32 1 4 4 3650 00 A=3646 ~ 20 475 2 470 1173.23 - THE DIMENSIONS ARE GIVEN ON THE OUTSIDE FIBER OF THE REBAR [SEE BELOW)
~
22 0 2 980 0 00 -THE TOTAL LENGTHS ARE CALCULATED ON THE BASIS OF THE CENTERLINE
002 D32 1 23 23 8810 11 1 A=Bl2B B=5B6 25 0 3 850 0.00 (ISO 3766:2004 - METHOD B)
28 0 4.830 0.00 - THE BENDING ANGLES ARE GIVEN IN DEGREES
~
32 600 6 310 378S.05
4;
E
028 D32 1 4 4 5180 11 1 A=1419 B=38S9
36 0 7 990 0.00 .,
~
40 0 9.860 0.00
02[ D32 1 6 6 6780 11 1 A=141B B=5459
~ 'Type T Type R
02D D32 1 4 4 5570 00 A=5566 ~ Total Length - Bended: 1038
Total Length - Straight 37 a
~
Total Length (m): 1075
011 D20 1 43 43 6690 99 1 A=B4D R=B27
"'Lop.=1xB40
Total Weight - Bended 4725
~
Total Weight - Straight: 233
012 D20 1 28 28 6690 99 1 A=B40 R=B1'J Total Weight (kg) 4958 •J
Lop =1xB40
~
Mean Size Imm] GENERAL WEIGHT kg
I
27 .4-
I I
4958
I
A•m•CAD• -OTP- A•m.EAD•-OTP- A•m•CAD• DTP
AmoCAD• -OTP-
CLIENT:
11
PROJECT IMPLEMENTATION CONSULTANT FILE NAMEITtN BAN v£ : SCALEITY Le: STATUS TfNHTR6NG: PROJECTIDIJAN : HANOI PILOT LIGHT METRO LINE Sedian Nhon •Hanci RailwayStation
• a-io E>Au ru: TJVAN THl,fC Hli;:N DI/ AN PIC-TEC-GRR-ll'No.ID4-18212'6_llADWG - Technical Design
Tuv£N SOONG sAT E>0 THI THI -E>li:M TP HA N()I Elofn N~n ·Ga Hil NOi
• SYSTRAS.A
u "' 21/11Y11
""""'"' A.K 3.Maurls
."'"' HRB
DESIGNED BY THltr K£ : FORMATKHO BAN ve: DATEINGAY: TTTlEITtN BAN VE: NHUE RIVER CROSSING
2A
"""'"' 2nd aubmllalan ar lectmlcal daalgn A.K ].Maurls
·"'""'
A.K A1 23/06/10 WQT SONG NHUe
~~ 1C D1/11Y1D
"""""" A.K G.Maur1s
·"'""' CHECKEDBYsoAT: This d'awilg must not be eilhlr IDMed, o:ipisd orOlharwiae rep'Ocluoed PIERS - P151 - REINF - BAR LIST.s HANOI METROPOLITAN RAIL TRANSPORT PROJECT BOARD
•• ,. """" """"'"' A.K ~.Maurls P.Amaud G. Maurls In - er h pmrt ar uled for •nr prupmeWlhoullhll prlarwrlllln
TRV. P151. cOrTHi:.P. DANH MVC COTTH!=:P
H 1A
"""" Flllll lsaua A.K 3.Maurls
·"'""' BAN·~ AN oU'ONo sAroO THI HANQI pmnnllillon ol HRB.
REVISION
"'"
DESCRIPTION
-· ..,.,. (Hl'CflE!QI
PROJECTDIRECTORIGINAeocDIJ AN : CHIEF CESIGNERICll) NHla,lTHl£'T Ke : Mn vii My kh!lng 4JVC ~RI) d,lng - mol hhh lll)c, rr(ll phln hrly DR.WING ND.IBAN~ SO :
n SO'AElOI ""y NOi DUNG sO'AElOI m• ..T ailrtil;Mllil~~ Alain B~chereau P.Amaud
kllln ~ mll kh!lng41VC..,Mngf'blngvllnbllncilll HRB.
PIC-TEC-GRR-WVO-J04-18212-B 3A
~
~
'' I!!
!iil ~I:!
ut
i w .!:
F %
!I $i
!;l 8
~ uii: B
I I
~ ll002
032 I I
I -,
DETAIL A
I I,_ ·- V cHJTIETA
~ro+ I I
I I
v 21 I I
1 l001
032 I I
~
I
I I
I I
I I
l 003
032 I I
I ~ I
L - - - ·- -
_ _J
£ ~ ,i.: ,i.:.. -}
c::::::J 017 D12
(cil200 '·
l004
2x2•12-032
v-- £1~ ,~ ,~ ..;
"
D12c::::::J 017
(dl300
£~ ,, ,i.:.. -}
c::::::J 017 D12
(cil200 '·
~--- --- --- - ---
-- --
LJ 04ld04
007 12-032
-- ~ ---
~
B
SECTION A-A
M~T CAT A-A
SCALE: 1/50
ri' Li;: 1/50
o----+---+---------------_.____....__ __.....__ ___. Q.IENT:
o----+---+---------------_.____....__ __.....__ ___. CHOflAuru:
3" 21111r11 Updatlld A.K
2A 30KM/11 2nd •ubmll1lon oflllchnlcal daolgn A.K
10 D1111r!D UPDATED A.K
1C ~B/1D A.K
v
012
018 a@l200
012
019 a@l200
020
012 0@l100
-v012
@a(cil300
020 D@l300 012
012
-(o19)0@l300
012
018 a@l200
012
019 0,-----@l200
020 -€VD@l100
LC
HRB
8I()
"'
0
~
"'
Updatad
18 2Ml&'ID UPDATED A.K HANOI METROPOLITAN RAIL TRANSPORT PROJECT BOARD
1A 31m1/1D Flrotlla» A.K1----+---+----------------4--------11-------l BAN DlfAN llWNG sA.rllOTHI llANQI
REVISION DATE
SLrAOOI Nal.Y
DESCRIPTION
NQI DUNGWAfJOI
IHIHl!BI'
HIM!
CllllClllBI'
IOI.!
8
~
t1i.....I()
~
8
~
•PROJECT IMPLEMENTATION CONSULTANT
11 VAN lHl,IC HleN DI,/ AN
SYSTRAS.A
PROJECTDIRECTOR GIAMaocDI/AN:
Alain B~cheraau
FILE NAA1El~N BAN/£:
DESIGNED BYTHli;rK£ :
A. K
CHECKED BYSlll.T:
G. Maur1s
CHIEF~IGNERCll) NHleMlll1£rKe:
P. Amaud
4
1 ~oaJ1
LJ
18-032 00
SECTION 8-B
M~T CAT B-B
SCALE TYLE:
FORMATKHO BAN VE:
A1
SCALE: 1/50
TYLI;: 1/50
STAlUS TfNH~G :
Teclmical Design
DAlEINGAY:
31/01/10
Thil <Rwi'ID mUll:notbe eithlrlOlrled,<q>ied«otl'lll'Wile NP'Odiacl
ln wtdeah P11rtorul8dfor•nr prupmewllhoul:.. prlor'Mltsl
parmlllllonot HRB.
......My_..,.,._.......ng ..... ..,.. .... _rn(llpMni.y
.... ~ ... - ......... ~t~YGnb6ncOoHRB.
NOTES : ~~~~~~~~~~~~~~~
GHI CHIJ:
1. REINFORCEMENT YIELD STRENGTH: FY=420 MPA.
1. CllONG DO CHAY COACO'r THEP fc=420 Mpa.
2. CONCRETE COVER: C=50 MM.
2. LdP BE TONG BAf> VS c=50 mm
PROJECT DI,/AN: HANOI PILOTLIGHT METRO UNE Sedian Nhon•HantiRailway S1atial
TIJY£NflOONG sATElOTHITHIfll~M TPHANQI BatnN~n · Ga Hi NOi
Tm.E~NBANVE : NHUE RIVER CROSSING
VU'QT SONG NHUI;:
PIERS-PIERCAP - P152 - REINF - 1/3
TRV-MO TRIJ • P152 - COT THIOP • 1/ 3
DRAl'l1NGNO. BANV£SO:
PIC-TEC-GRR-WVO-J04-18220-B 3A
~
~
2N
I:!
t
i
~ii:
~-
,, - 111 1- ·- ·- -·-·-·-T. - I' ~ - 17. ·- -
' r1
] '

II/ ill
p."0 ,
ll
. ,. . • • • --. --. -. . .
 rV
~"" ' 
)
~
v-~: I
.1
I~ ~I! JU. 1• . . . . . . . - - - - - - - . 'R
  I I I I I 4
 ""Tl - - - - - - ITT
'%  II I II
013 014
016 D16
013 014'
' U~ ~ 11 II
  I I
LJ 020
020   I I 016 009 010
   - - - - - - II II
    II I II
    II I II
 005 006
D32 '. UL _ill 11 032
005 006 /
   II I
"'l'  I I 032
005 006 ;
032
' ' - - - I I 005 006
 ~ li_ / , I II
I!!
~
uw .!:
F %
!I $i
!;l 8
uB
  I 1 1 II
 .ll II J II
 i....i__ - - - - --irr II
'  II I J I
 "T
...,.__,. I
  I II
77 77
__, ~---- · --- - - - · - - - - - - - - - - - - - - - · -
DETAIL B
CHI TIET B
SCALE: 1/10
T'i'LI;:: 1110
o----+---+---------------_.____.___ __...__ __. Q.IENT:
o----+---+---------------_.____.___ __...__ __. CHOflAuru:
3" 21111r11 Updatlld A.K
2A 30KM/11 2nd •ubmll1lon oflllchnlcal daolgn A.K
10 D1111r!D UPDATED A. K
1C ~B/1D
HRB
016
· - -
•
011 I
PROJECT IMPLEMENTATION CONSULTANT
11 VAN lHl,IC HleN DI,/ AN
SYSTRAS.A
18 2MIBl1D
Updatad A . K
UPDATED A. K HANOI METROPOLITAN RAIL TRANSPORT PROJECT BOARD
1----1---+-F....lrot--..-------------+-,.-_K---+----1----l BAN DI/AN llWNG IA.TllOTHI llANQI1A 31m1/1D
REVISION DATE
SLrAOOI Nal.Y
DESCRIPTION
NQI DUNGWAfJOI
IHIHl!BI'
HIM!
CllllClllBI'
IOI.!
PROJECTDIRECTOR IGIAMaocDI/AN:
Alain B~cheraau
~-, - ·- - - ~
- - - - - - I
I
I
!/'' !/'' ,)/ ' 1::1/ 1J/ 'I• </
u </
I• </
u
I4x6-D16
015
6-016
:~, ~I 005 006
032
14
v v
LJ
020
020 016
011
009
D16 016
009
016
010
- - - - - - - - - - - - - - - - - - - - - - - - - - - - - - - - - - - - · · -- - · - -
FILE NAA1ElTtN e,l,i/£:
DESIGNED BYTH1£TK£ :
A. K
CHECKED BYSlll.T:
G. Maur1s
CHIEF~IGNERCll) NHleMTH1£rK£:
P. Amaud
DETAIL A
CHI TIET A
NOTES : ~~~~~~~~~~~~~~~
GHI CHIJ:
1. REINFORCEMENT YIELD STRENGTH: FY=420 MPA.
SCALE: 1/10
T'i'LI;:: 1110
1. CllONG DO CHAY COACOT THEP fc=420 Mpa.
2. CONCRETE COVER: C=50 MM.
2. LdP BE TONG BIID VS c=50 mm
SCALEITYLE:
FORMATKHO BAN VE:
A1
STAlUS TfNH~G :
Teclmical Design
DATEINGAY:
31/01/10
Thil <Rwi'ID mUll:notbe eithlrlOlrled,<q>ied«otl'lll'Wile NP'Odiacl
ln wtdeah P11rtor ul8dfor•nr prupmewllhoul:.. prlor'Mltsl
parmlllllonot HRB.
......My_..,.,._.......ng ..... ..,.. .... _rn(llpMnt.y
.... ~ ... - ......... ~t~ YGnb6n cOo HRB.
PROJECTIOI,/AN: HANOI PILOTLIGHT METRO LINE Sedian Nhon•HantiRailway S1atiCln
TIJY£N flOONG sAr ElOTHITHIfll~M TP HANQI Elatn N~n · Ga Hi NOi
mtETtNB,l,iVE: NHUE RIVER CROSSING
VU'QT SONG NHUI;:
PIERS-PIERCAP - P152 - REINF - 2/ 3
TRV·MO TRV • P152 ·COT THIOP • 2 / 3
DRAl'l1NGNO.IBANVESO:
PIC-TEC-GRR-WVO-J04-18221-B 3A
~
91-020
-@D
~ ll 001
111100/300
Dl2
I I I I
/F .t=~ "
~'
;=;=
"" "" ~l003
Dl2 ~"
Ill
Ill Ill
~~
·111
~ F----8~
~
"'
~
u ~~ u
~ 4x46-D12 018 ~
~
= I [ I'Oi1' 4x46-D12 46-012 019 I>;;,:;I
~ ll ;01 ~ ll;02
021 005005 021
:lALTERNATE
006 006Ill 11-IAYTiil: D
~D
c::: ---, -N
111 =--- 'i'...
4x10-D16 M =;; D D
M
009 D D
@1200 N
~v / ,
~
~ --u 'l 'I '1111 I u ~ ~I003
D32
• I
I
,. ~
- - 10x8-D16
"" != != !!= (D275x200 011
~ ll 001
~
fe ~
~
~ I-«: •Dl2 I
~  oos 006
D32 la ......
- a D32
oos 006 I
SECTION C-C - ~
-- -M,;TCAT C-C -
• c--
SCALE: 1/10
c--
)9 -« •Ti' LI;.: 1/10
- ""' -- •
10-016 I - - - -010
@1200
&-- • E» -«: • ~
• E» I-«: •014
2x3-D16
L... •• ....ALTERNATE
TI-IAYTHI:
- -D - -
• E» I-«: •~
f--- f---
'l a
""' - ..020
2x20 020
@1100
rw ~
--- -f--- le f--- f--- De I-« •
La ..... -- ..
• I ,p)J I .1JJ I 1n I I nn I I I I I ~I 1 lflec l.
o
4 o
~ 013
2x4-x3-016
015
~ 0161SECTION D-D ~N ES:
MATCATD-D
GHI CHI.I:
1. REINFORCEMENT YIELD STRENGTH: FY=420 MPA.
"scALE : 1110 1. CUONG £>0 CHAY COA COT TH!:P fc=420 Mpa.
Ti'LI;.: 1/10 2. CONCRETE COVER: C=50 MM.
~ 2. LdP ee TONG ~ ve: c=5D mm
~ CLIENT:
11
PROJECT IMPLEMENTATION CONSULTANT FILE NAMEITtN aMIv£ : SCALEITYLe : STATUSTfNHTR6NG: PROJECTIDIJAN : HANOI PILOT LIGHT METRO LINE Sedian Nhon. Hanci RailwayStation
~ • 21111»11 A.K ~.Meurls ...... a-io E>Au ru: nrvAN THl,fC Hli;:N DI/ AN PIC-TEC-GRR-IHVOJ04-111222-6_l1ADWG - Technical Design
Tuv£N SOONG sAT E>0 THI THI -E>li:M TP HA N()I Elofn N~n ·Ga Hil NOi"' """'""'
• • "' """"' 2nd aubmilaion of technical dellign A.K 3.MauriB
__,
SYSTRAS.A
DESIGNED BYTHltrK£ : FORMATKHO BAN ve: DATEINGAY: TTTl.El'ftNBANVE: NHUE RIVER CROSSING
ii
u ,. 01/11Y10 "PDATE> A.K 3.Maurls
__,
HRB A.K A1 31/01/10 WQT SONG NHUe
I
1D
"""" """'""' A.K ].Meurls
__,
~~ 1C
"""" "PDATE> A.K ~.Meurls
__,
CHECKEDBYsoAT: This d'awilg must not be eilhlr IDMed, o:ipi!lcl orOlharwiae rep'Ocluoed PIERS-PIERCAP - P152 - REINF -3 / 3.s 18
"'"''" Date Missing A.K ~.Maurls P.Amaud
HANOI ME'TROPOUTAN RAIL TRANSPORT PROJECT BOARD
G. Maurls In - er h pmrt ar uucl for •nr prupmaWlhoullho prkrwrlllln
TRV-MO TRV - P152 - COT TH!=:P - 3 / 3•• BAN·~ AN oU'ONo sAroO THI HA NQI pennllillon ol HRB.
~ H 1A 31/01/10 ,........ A.K 3.Maurls
__,
PROJECTDIRECTORIGINAeocDIJ AN : CHIEF CESIGNERCll) NHla,lTHl£'TK£ : DR.WING NO.IBANVESO :
I3A
Mn vii My kh!lng 4JVC ~RI) d,lng - mol h"rlh lh)c, m(ll phln hrly
REVISION
"'"
DESCRIPTION
-· ,,.,.,. (Hl'CflE!QI
Alain B~chereau
kllln ~ mll kh!lng41VC..,Mngf'blngvllnbllncilll HRB.
PIC-TEC-GRR-WVO-J04-18222-Bn SO'AElOI ""y NOi DUNG sCrA.ElOI m• ..T ailrtil;Mllil~~ P.Amaud
•
r
Total Lengths and Weights
No. No. No.
Number of members: 1
'" Type No. !bar Total
Length
hape Bend
'" Type No.
'"'
Total
Length
~hape Bend
'"
,,,. No. .... Total
Length
"'" Bend
11ark •nd of
"'"'
No. (ode Type Dinensions Shape Rev. mark •nd of
"~"
No. (ode Type Dimensions Shape Rev. mark •nd of neach No. (ode Type Dimensions Shape Rev. Type T Type R
size ....1e11b. size ........ size 11enb. ....mm mm mm a mm mm mm a mm mm mm a
Total Weight Total Total Weight Total
~
Diameter Length per unit Weight Length per unit Weight
001 032 1 36 36 11700 ,, 1 A=S86 8=11215 011 016 1 BO BO 2750
" 1 A=2391 E :i 021 016 1 20 20 2760
" 1 A=Zl,.GO
E :i lml (kg/ml (kg) lml )kg/ml )kg)
6 0 0.222 0.00
IQ 8 0 0.395 0.00
002 031 1 36 36 53BO 00 A•5376 012 010 1 91 91 8850 99 1 A•11100 8-2400
10 0 0.617 0.00
~ IQ
11 2097 0.888 1861.85
003 031 1 36 36 11700 ,, 1 A:S86 8:11215 013 016 1 14 14 4310 99 1 A:307 8:1118-~2401 14 0 1.110 0.00
""'"'"""NGTI
'"""~NG BINH 16 777 1.580 1227.66
~ IQ 18 0 1.000 0.00
004 031 1 48 48 moo ,, 1 A=586 8=11215 014 016 1 3 3 45BO 99 1 A~2 B=1118-~Zltll1
""'" 10 1057 1.470 1610.67
'"""NGTI
'"""~NG BINH
IQ
11 0 1.9BO 0.00
005 031 1 36 36 6010 15 1 A·1805 B-209 C-4221
~ 015 016 1 14 14 5790 99 1 A.aG7 8·2500 15 0 3.850 0.00
r1=160 18 0 4.830 0.00
~ IQ 31 2241 6.310 14140.71
006 031 1 36 36 6950 15 1 A=4lB4 B=SS4 wno 016 016 1 6 6 6060 99 1 A=442 8:2§00
36 0 7.990 0.00
d IQ
40 0 9.860 0.00
001 031 1 11 11 6180 11 1 A=2016 8=2355 C=2016 011 011 1 184 184 5660 99 1 A=2400 8=364
d IQ
Type T Type R
008 031 1 18 18 5680 11 1 A:2016 8=1854 (:2016 018 011 1 184 184 4650 99 1 A=357 B:19GO Total Length - Bended : 5978
Total Length - Straight: 194
016 1 40 40 4160 11 1 y 011 1 46 46 4340 99 1
IQ Total Length (m) : 6171
'" A=1155 8=350 C=•2S-~J625 019 A=205 8=19GO
MEAN
Total Weight - Bended : 18620
l'HUO NGTI
-NGB]NH Total Weight - Straight : 1222
010 016 1 10 10 4190 11 1 A•1155 B-485 C••25-•J625
Ii:::d1 020 010 1 40 40 6190 11 1 A-1284 B•tll00-•3700 C.Z316
Ii:::d1 Total Weight (kg} : 19841
~~NGTI
-NGB]NH ~~NGTI
'"""~NG BINH
Mean Size {mm) : GENERAL WEIGHT kg
I 22.8
I I 19841
I..,__-DTP- AruCAllll -DTP- ---DTP- -~
CLIENT:
Iii
PROJECT IMPLEMENTATION CONSULTANT FILEN.A.MEIrt!N BAN/£: SCALEI1fLE: STATUST~H~G: PROJECTIDIJAN: HANOI PILOT LIGHT METRO LINE Secti111 Nh111 ·Hanoi Railway $tati111
; CHOE>AuTll: lllVAN THl/C Hli;:N Dl,I' AN PIC-TIDGRR-wvo-Jll4-18223-B_,ZA.DWG - Technical Design
TUYl:N EllJONG sATDO THI THIElli:M TP HA. NOi Elofn Nh&i ·Ga Hi N(!i
• "" """"' 2nd aibmillaion oftBdlnieal dBllign ~K 3.MalSis
'·""""' SYSTRAS.A
u " 01/10/10 UPDATED H 3.MalS!s
.""""' HRB
DESIGNED BYITiii~ ~ : FORMATKHO BAN -1: : DATEINGA.Y : TITlEIID.I BAN/£: NHUE RIVER CROSSING
10
'''"'" "'"'""' H 3.MalS!s .""""' AK A1 30/01/10 VLJQT SONG NHUI;'
~.
"'"'" G.MalS!s •.""""' CHECKED BYsoAT:' . 10 UPDATED H This drawil'IQ m.iat not be either lol!lnad, copied crolharwiaa reproduced PIERS-PIERCAP - P152 - REINF - BAR LIST-1/2.~ HANOI METROPOLITAN RAIL TRANSPORT PROJECT BOARD
•§ 1B 19/02/10 Data Missing H IG. MalS!s ..""""' G. Maurls hwhala orIn part erumd for anypru-wllhautlhB prbrwrllllln
TRV-MO TRV-P152-C0TrHi=P- DANH MVCCOTrHi=P-1 /230/01/10 Frlstl•ua H 3.MalS!s
.""""' BAN DIJ AN elJONG sATeO THI HA NQI pmrmlalan d HRB.
I~
1A
PROJECT DIRECTORIGIAM tx'Jc DIJAN :
""""' DA"
""""""'
....,.
·-· '"'""""
CHEF DESIG~ ICHO NHla,I Tiiltl' ~ : Bin vi nlly khOng 6tFqC phOp a~ dl.l'lg dllOI ~ hlrti thil'c, m01 phOn hey DRAWING ND.I BAN VE SO:
I 2An
"''"' 'DA' N01DLNs(rA£lOI
""" "" Clil~ll)IHTKJ: Alain B6chereau P.Amaud
toAn bO. mA khOng 6tFqC 811' o.lrig t bl.11'41 "*'bin C)9 HRB.
PIC-TEC-GRR-WVO-J04-18223-B
BENDING DIAMETERS Imm)
Diameters
' B 10 12 14 16 18 20 22 25 28 32
" 40 Lengths of standard hooks Imm)
Hooks
!Type 1)
" 48 60 72
" " 108 120 132 150 224 256 288 320
IDiameters I 6 B 10 12 14 I 16 18 20 22 2s I 2s 32
" 40
D
fr;imes
(Type 21 24 32 40 48
" 64 108 120 132 150 224 256 288 320
Hooks 0 0 0 0 0 0 0 0 0 0 0 0 0 0 'l~~~~a%e 72
" 120 144 168 192 216 240
"' 300 336 384 432 4BO(Type 1)
R
Frames
@_
D
0 0 0 0 0 0 0 0 0 0 0 0 0 0 Framn
72
" 120 144 168 192 216 240 264 300 336 384 432 4BO(Type 2) {Twne 2)
'l~~~ea%e 0 0 0 0 0 0 0 0 0 0 0 0 0 0
R
Frames
{Tvne 2)
0 0 0 0 0 0 0 0 0 0 0 0 0 0
BAR DIMENSIONS
- THE DIMENSIONS ARE GIVEN ON THE OUTSIDE FIBER OF THE REBAR ISEE BELDWI
nchora~e
" 48 60 72 84
" 108 120 132 150 168 192 216
"'(Type 1
~
D
Frames- THE TOTAL LENGTHS ARE CALCULATED ON THE BASIS OF THE CENTERLINE.
" 48 60 72 84
" 108 120 132 150 168 192 216
"'(ISO 3766:2004. - METHOD Bl
!Tvoe 2)
'l~~~ea%e 0 0 0 0 0 0 0 0 0 0 0 0 0 0
- THE BENDING ANGLES ARE GIVEN IN DEGREES. R
Framn 0 0 0 0 0 0 0 0 0 0 0 0 0 0
11.y
E !hoe 2)
., nchora%e 65 65 65 65 65 65 72 BO BB 100 112 128 144 160
;t- (Type 1
D
Frames
!Tvoe 2) 65 65 65 65 65 65 72 BO BB 100 112 128 144 160
..____ 'l~~~ea%e 0 0 0 0 0 0 0 0 0 0 0 0 0 0
R
Framn
!hoe 2)
0 0 0 0 0 0 0 0 0 0 0 0 0 0
0
"'
•.;
-
~
c
ArwCAD9 -OTP- ~-OTP·
CLIENT:
Iii
PROJECT IMPLEMENTATION CONSULTANT FILEN.A.MEIrt!N BAN~: SCALEI1fLE: STATUST~H~G: PROJECTIDIJAN: HANOI PILOT LIGHT METRO LINE Secti111 Nh111 ·Hanoi Railway Statioo
; CHOE>AuTll: lllVAN THl/C Hli;:N Dl,I' AN PIC-TIDGRR-wvo-Jll4-18224-B_.2A.DWG - Technical Design
TUYl:N EllJONG sATDO THI THIElli:M TP HA. NOi Elofn Nh&i ·Ga Hi N(!i
• "" 3DIO<l11 2nd aibmillaion oftBdlnieal dBllign ~K 3.MalSis
'·""""' SYSTRAS.A
u " 01/10/10
""""'"'
H 3.MalS!s
.""""' HRB
DESIGNED BYIn11a ~ : FORMATKHO BAN -1: : DATEINGA.Y : TITlEID.I BAN/£: NHUE RIVER CROSSING
10
'''"'" """"'"' H 3.MalS!s .""""' AK A1 31/01/10 VLJQT SONG NHUI;'
~.
"'"'" G.MalS!s •.""""' CHECKED BYsoAT:' . 1C UPDATED H This drawil'IQ m.iat not be either lol!lnad, copied crolharwiaa reproduced PIERS-PIERCAP - P152 - REINF - BAR LIST-2 / 2.~ HANOI METROPOLITAN RAIL TRANSPORT PROJECT BOARD
•§ 1B 19/02/10 Data Missing H IG. MalS!s ..""""' G. Maurls h whala or In part er umd for any pru-wllhautlhB prbrwrflllln
TRU-MO TRIJ - P152 -COT THi=P- DANH MIJC COT THi:P - 21231/01/10 Frlstl•ua H 3.MalS!s
.""""' BAN DIJ AN elJONG sATeO THI HA NQI pmrmlalan d HRB.
I~
1A
PROJECT DIRECTORIGIAM tx'Jc DIJAN :
""""'
,.,,
""""""'
....,. .,,.,. '"'""""
CHEF DESIG~ ICHO NHla,I THltl' ~ : 1Wri vi nlly khOng 6tFqC phOp a~ dl.l'lg dllOI ~ hlrti thil'c, m01 phOn hey DRAWING NO.BAN VE SO:
I2An
"''"' "'" N01DLNs(rA£lOI
""" "" Clil~ll)IHTKJ: Alain B6chereau P.Amaud
toAn bO. mA khOng 6tFqC 811' o.lrig t blil'l(I "*'bin C)9 HRB.
PIC-TEC-GRR-WVO-J04-18224-B
~
~
'' I!!
!i! ~I:!
ut
i w .!:
F %
!I $i
!;l 8
~ uii: B
I
~ ll002
032 I I
r ~ 1
DETAIL A
,_ ·- V cHITIETA
-knJ I I
I I
v 21
I I
I I
032 ! 11
I
1 l001
' I
I
I II l
I
I I
l 003
032 I ' I
I I
L - - - _J
£1~ ,~ ,~ ..;
c:::::::J 017
012
@200 '·
l004
2x2•12-D32
~ '
~~ ,i.: ,~ ..;
'·
c:::::::J 017
012
@300
.w:: ~ ,,
''"
..;
c:::::::J 017
012
@200 '·
---- ------ ---- - - - -
LJ 04ld04
007 12-032
_._ ..... ,__._
~ Le:
$SECTION A-A
MAT CATA-A
SCALE: 1/50
ti' u;: 11so
o----+---+---------------_.____....__ __...__ __. Q.IENT:
o----+---+---------------_.____....__ __...__ __. CHOflAuru:
3" 21/ 11r11 Updatlld A.K
2A 30KM/11 2nd •ubmll1lon oflllchnlcal daolgn A. K
10 D1/ 11r!D Updatad A.K
1C ~B/1D A.K
- v
012
018 a@200
012
019 a@200
020
012 0@100
----7012
018 a@300
020
012 0@300
012
@a@300
012
018 a@200
012
019 0,-----@200
020 r.:2)n@100 '912
l _,,C:
HRB
0
~,,..
0
~,,..
Updatad
18 2Ml&'ID UPDATED A.K HANOI METROPOLITAN RAIL TRANSPORT PROJECT BOARD
1A 31m1/1D Fl..tlla» A.Kt----+---+---------------_....--------11------l BAN DI/AN llWNG IA.TllOTHI llANQI
REVISION DATE
SLrAOOI Nal.Y
DESCRIPTION
NQI DUNGWAfJOI
IHIHl!BI'
HIM!
CllllClllBI'
IOI.!
80,,..
r::::
:ii
~
8
~
•PROJECT IMPLEMENTATIONCONSULTANT
11 VAN THl,IC HleN DI,/ AN
SYSTRAS.A
PROJECTDIRECTOR GIAMaocDI/AN:
Alain B~cheraau
012
@300
D 0121--=02=0___>+----<
@300 1. . .~. . . . .--~~
FILE NAA1ElTtNBAN/£:
DESIGNED BYTH1"1K£ :
A. K
CHECKED BYSlll.T:
G. Maur1s
CHIEF~IGNERCll) NHleMlll1£rKe:
P. Amaud
012
4SECTION B-8
MAT CAT B-B
SCALE TYLE:
FORMATKHO BAN VE:
A1
SCALE : 1150
ri' LS: 1/50
STAlUS TfNH~G :
Teclmical Design
DAlENGAY:
31/01/10
Thil <Rwi'IDmUll:notbe eithlrlOlrled,<q>ied«otl'lll'Wile NP'Odiacl
ln wtdea h P11rt orul8dfor•nr prupme wllhoul:.. prlor'Mltsl
parmlllllonot HRB.
......My_..,.,._.......1111 ..... ..,.. .... _m(llpMnt.y
....~ ...- .........~t~ '"""'" "'" """·
D
NOTES : - - - - - - - - - - - - - --
GHICHIJ:
1. REINFORCEMENT YIELD STRENGTH: FY=420 MPA.
1. CllONG DO CHAY GOACO'r THEP fc=420 Mpa.
2. CONCRETE COVER: C=50 MM.
2. LdP BE TONG BAf> VS c=5D mm
PROJECT CVAN: HANOI PILOTLIGHT METRO LINE SediDn Nhon•HantiRailwayS1atial
TIJY£NflOONG sATElO THITHIfll~M TPHA NQI Batn N~n · GaHi NOi
Tm.E TtNBANVE: NHUE RIVER CROSSING
VU'QT SONG NHUI;:
PIERS-PIERCAP - P153 - REINF - 1/3
TRl,1-MO TRl,I • P153 - COT THIOP • 1/ 3
DRAl'l1NGNO. BANV£SO:
PIC-TEC-GRR-WVO-J04-18230-B 3A
~
~
2..I:!
t
i
~ii:
]'~ '~
/)
I/
ll
"" "" ~ 
?---~::,
I ~
I~~
 I
"" ~~
" '
UL
013 014
.
 
 
LJ 020
020
"



 005 006
032 .

' 005 006
032
I!!
~
u 3" 21111r11
2A 30KM/11
10 D1111r10
w .!:
1C ~8110
1- - - -·-·-·-T. -
. . . . . . . . . .
- - - . . . . - . - - - - - - -
-
- - - - -
I
 
  
T
  
   - - -

' 

'  I
TI ~
- - - - ~
   II J
 "" 11 I
'    Ill
-y
I
 I II
II II
- - ~ - - - - - - - - - · - - - · - - - · - - - · - - - · -
DETAIL B
CHI Tl~T B
SCALE: 1/10
TYLS: 1110
HRB
~ ~ - 17. · - ~
.
.
I
II
.--l11
II I
I ll
II I
J I
I I
I II
II
II
II
I
016
· - -

III r-il
I /f
~h
'
~  "JI
 II J T
-vT77 II
.--l11 II
D16
013 014
li II
I I
I 016
009 010
II
II
II
11 032
005 006 /
II
I 032
oos 006 I
011 I
PROJECT IMPLEMENTATION CONSULTANT
Tl1 VAN THl,IC HleNDI,/AN
SYSTRAS.A
F %
!I $i
18 2Ml&'ID
!;l 8
UPDATED A.K .Amaud HANOI METROPOLITAN RAIL TRANSPORT PROJECT BOARD
t--+=:-::--+-=F1ro1...,..,...-..-------------+,.:..:.K.:_---Eo..:::=-+..:..:Amau=d=---1 BAN DI/AN allONG sA.raO THI HA NQI
u 1A 31m1110
REVISION DATE
B SLrAOOI Nal.Y
DESCRIPTION
NQI DUNGWAfJOI
IHIHl!BI' CllllClllBI' l>&IJ"lllllill
HIM! IOI.! otl1t11;M1111!rl!
PROJECTDIRECTOR IGIAMaocDI/AN:
Alain B~cheraau
~I- -· - ·- - - ~
- - - - - - I
I i
I II <1;1 !;/' 1/ ,,!;' 1J;/
J <)
I< J <) <)
I416-016
015
6-016
;:~I 005 006
032
r4
v v
LJ
020
020 016
011
009
016 016
009
016
010
- - - - - · - - - - - - - - - - - - · - - - · - - - · - - - · - - - · - - - · - - - · - -
FILE NAA1ElTtN e,l,i/£:
DESIGNED BYTH1£TK£ :
A. K
CHECKED BYSlll.T:
G. Maur1s
CHIEF~IGNERCll) NHleMlll1£rK£:
P. Amaud
DETAIL A
CHI Tl~TA
SCALE: 1/10
TYLS: 1110
NOTES : --------------~
GHI CHIJ:
1. REINFORCEMENT YIELD STRENGTH: FY=420 MPA.
1. CllONG DO CHAY COACOT THEP fc=420 Mpa.
2. CONCRETE COVER: C=50 MM.
2. LdPBE TONG BIID VS c=50 mm
SCALEITYLE: STAlUS TfNH~G :
Teclmical Design
PROJECTIDVAN: HANOI PILOTLIGHT METRO LINE SediDn Nhon•HantiRailwayS1atial
FORMATKHO BAN VE:
A1
DAlEINGAY:
31/01/10
Thil <Rwi'IDmUll:notbe eithlrlOlrled,<q>ied«otl'lll'Wile NP'Odiacl
ln wtdea h P11rt orul8dfor •nr prupmewllhoul:.. prlor'Mltsl
parmlllllonot HRB.
......My_..,.,._.......ng ..... ..,.. .... _m(llpMnt.y
.... ~ ... - ......... ~t~ YGnb6n cOo HRB.
TllY£NflOONG sAT00llilTHIfll~M TPHA NQI BatnN~n. Ga Hi NOi
Tm.E ~NBANVE : NHUE RIVER CROSSING
VU'QT SONG NHUI;:
PIERS-PIERCAP - P153 - REINF - 2/ 3
TRV-MO TRV • P153 ·COT THIOP • 2 / 3
DRAl'l1NGNO.IBANVESO:
PIC-TEC-GRR-WVO-J04-18231-B 3A
~
94-020
-@D
~ ll 001
111100/300
Dl2
I I I I
/F .t=~ "
~'
;=;=
"" "" ~l003
Dl2 ~"
Ill
Ill Ill
~~
·111
~ F----8~
~
"'
~
u ~1-k u
~ 4x50-D12 018 ~
~ I= I ['Oi1' 4x50-D12 50-012 019 I>;;.:;/
005 021
~ ll:01
:l ~ll;°'
021 005
ALTERNATE
Ill THAY THI:. 006 006
~g
c::: --,
~lit
111 =-::---
4x10-D16 rn
0 D D
rn
009 D .. D
@200 N
~" / .
~
~ -eu 'l 'I '1111 I u rtf4f ~I003
D32
• I
- - 10xB-D16
I
,_ ,..... 011
"" ;= != ~ 111275•200~
le~
~
pe I-« •~ ll 001
Dl2 I
$  005 006
Dl2
,_ .._
- - Dl2
aas 006 ;
SECTION C-C - -- --.,
-MATCATC-C -
• c--0
SCALE: 1/10
c-- E» -« •Ti' LI;.: 1/10
- ......
-- ..
I - - - -010
10-016
@200
• E» -ec • ~&- I-« •• Ole
014
2x3-D16
- ......
-- ..ALTERNATE
Tl-IAYTHe
- -D - -
• E» I-« •~
r-- c--
'l - ...... - ..020
2x20 020
@100
rw
-- --. -r-- le r-- r-- pe I-« •
La .... -- ..
• I _,jj I .1JI I 1n I .m, I I I I n1 I~ l.
o
4 o
~ 013
2x4-x3-D16
015
~ 016
~SECTION D-D ~NOTES:
MATCATD-D GHI CHI.I:
1. REINFORCEMENT YIELD STRENGTH: FY=420 MPA.
SCALE: 1/10 1. CUONG £>0 CHAY COA COT TH!:P fc=420 Mpa.
Ti'LI;.: 1/10
2. CONCRETE COVER: C=50 MM.
~ 2. LdP ee TONG ~ ve: c=5D mm
~ CLIENT:
11
PROJECT IMPLEMENTATION CONSULTANT FILE NAMEITtN aMIv£ : SCALEITYLe : STATUSTfNHTR6NG: PROJECTIDIJAN : HANOI PILOT LIGHT METRO LINE Sedian Nhon. Hanci RailwayStation
; • 21111»11 A.K ~.Meurls ...... a-io E>Au ru: nrvAN THl,fC Hli;:N DI/ AN PIC-TEC-GRR-IHVOJ04-111232-6_l1ADWG - Technical Design
Tuv£N SOONG sAT E>0 THI THI -E>li:M TP HA N()I Elofn N~n ·Ga Hil NOi3A
"""'""'
• • "' """"' 2nd aubmilaion of technical dellign A.K 3.Maurill
__,
SYSTRAS.A
DESIGNED BYTHltrK£ : FORMATKHO BAN ve: DATEINGAY: TTTl.El'ftNBANVE: NHUE RIVER CROSSING
ii
u ,. 01/11Y10
"""'""' A.K 3.Maurls
__,
HRB A.K A1 31/01/10 WQT SONG NHUe
I
1D
"""" """'""' A.K ].Maurls
__,
~~ 1C
"""" """"'"" A.K ~.Maurls
__,
CHECKEDBYsoAT: Thill d'awilg must not be eilhlr IDMed, o:ipiecl orOlharwiae rep'Ocluoed PIERS-PIERCAP - P153 - REINF -3 / 3.s ,. 1""2110 Date Missing A.K ~.Maurls P.Amaud HANOI ME'TROPOUTAN RAIL TRANSPORT PROJECT BOARD
G. Maurls In - ot h pmrt ot uucl for •nr prupmewthoullho prkrwrlllln
lRIJ-MO lRIJ - P153- COT TH!=:P - 3 / 3•• BAN·~ AN oU'ONo sAroO THI HA NQI pmnnllillon ol HRB.
~ H " 31/01/10 ,....... A.K 3.Maurls
__,
PROJECTDIRECTORIGINAeocDIJ AN : CHIEF CESIGNERCll) NHla,lTHl£'TK£ : DR.WING NO.IBANVESO :
I3A
Mn vii My kh!lng 4JVC ~RI) d,lng - mol hhh lh)c, m(ll phln hrly
REVISION
"" DESCRIPTION
-· ..,.,. (Hl'CflE!QI
Alain B~chereau
kllln ~ mll kh!lng41VC..,Mngf'blngvllnbllncilll HRB.
PIC-TEC-GRR-WVO-J04-18232-Bn SO'AElOI ""y NOi DUNG sO'AElOi m• ..T ailrtil;llillil~~ P.Amaud
•
'
Total Lengths and Weights
,. ~.
I ti I -~ I
Number af members: 1
.. 1•• lohl ~. •• .. 1,,. .. rn• ~ee .. ~·
1,. No. Total
"'"
...... •• .·::. "' ~""" ,..1,,. ...... '"' .... E•k •• .:!.
,. ""''" Type llnen!ilons ... Rew. ... ...:!.~ ... ..''"'""'' 1•• DEslllll!i .... .... Type T Type R
'"' -- "" •• -mm mm mm - mm mm mm mm mm mm - -
Total Weight Total Total Weight Total
b
Diameter Lenth per unit Weight len~th per unit Weight
'" OlZ , 36 36 11701 11 , Ao51fi Bofl215
"' 016 , 80 80 2750
"
,
-· t::::::::::::l '" 016 , 20 20 2760 99 , ~· t::::::::::::l Im (kg/m) (kg) Im lkg/m) {kg)
----.---- ' 0.222 0.00
IQ
-
c::;;::::::J ' ' 0.395 0.00
o~ OlZ , 36 36 6160
" hOO
'" 020 , 94 94 BBSO
" 2 A-1'IO l-24GD -
10
' 0.611 0.00
-
b IQ + 2279 0.888 2023.75
'" OlZ , 36 36 1170C 11 , Ao5H B.fl2!i
"' 016 , 24 24 4310
" 2 A-311 llol~Z411
' 1.210 0,00
- -
111 1.58016 1227.66
'"
..,
IQ
-
b
,, ' 2.000 0.00
"' OlZ , 48 48 11701 11 , A=Slli B=TIZ&
"' 016 , ' ' 4580
" 2 A:ltl.Z B:'lfll-o.2U1 -
- ___E_ 1084 2.470 2676.25
'"
..,
IQ
22
' 2.980 0.00
~
-
·~
OlZ , 36 36 6020 1S , A-llOS MMC-WI
"' 016 , 24 24 5790
" 2 A-301 WSIO 25
' 3.850 0.00
~··
-
" ' 4.830 0.00
~ IQ
----,,--- 2269 6.310 14317.89
ON
"'
, 36 36 6950 1S , AoU14 l.S!4 C.znl
"' 016 , ' ' 6060
" 2 A-44Z B-2501 -
" ' 7.990 0.00
-
d IQ
40
' 9.860 0.00
-
007
"'
, 12 12 6180 21 , AoZOli llaB55 Co201fi ., 012 , 200 200 5660
"
, __
d IQ
Type T Type R
... "'
, "
,, 5680 21 , AoZOli llo1l5l> CaZ01i
•• 012 , 200 200 4650
" 2 Aol51 '""" Total Length - Bended' 6187
Total Length - Straight : 222
016 , 40 40 4160 21 2 A-1155 BJSI C.ms-31125 y 012 , so 5(1 434(1
" 2 Wl!i Bo1"t
IQ Total Length [m): 6409
o"
"'"w Total Weight - Bended: 18847
~· ~G
""'
lUNGB]NH
y y Total Weight - Straight' 1399
"' 016 , 10 10 429(1 21 2 A-1155 11-415 c.11125-3625
~·
020 , 40 40 6290 21 2 Aoa.r. B-fill-JllO c.2311i Total Weight [kg!' 20246
"w
-~·
~G'
""'
lUNGBlNH
'"
..,
Mean Size (mm) : GENERAL WEIGHT hg
I 22.6
I I 20246
I---OTP- ---OTP- --OTP-
--
CLIENT:
Iii
PROJECT IMPLEMENTATION CONSULTANT FILEN.A.MEIrt!N BAN/£: SCALEI1fLE: STATUST~H~G: PROJECTIDIJAN: HANOI PILOT LIGHT METRO LINE Secti111 Nh111- Hanoi Railway $tati111
; CHOE>AuTll: lllVAN THl/C Hli;:N Dl,I' AN PIC-TIDGRR-wvo-J04-18233-B_,2A.DWG - Technical Design
TUYl:N EllJONG sATDO THI THIElli:M TP HA. NOi Elofn Nh&i- Ga Hi N(!i
• "" 3ll/O<l11 2nd aibmillaion oftadmieal dBllign ~K 3.MalSis
"""""' SYSTRAS.A
u " 01/10/10
"""""" H 3.MalS!s
·""""' HRB
DESIGNED BYIn11aKi: : FORMATKHO BAN -1: : DATEI NGA,y : TITlEID.I BAN/£: NHUE RIVER CROSSING
1D
'''"'" """""" H 3. MaLDI
·""""'
AK A1 31/01/10 VLJQT SONG NHUI;'
~.
"'"'" G. MaLDI P.AmoOO CHECKED BYsoAT:' . 1C UPDATED H This drawina m.iat not be either lol!lnad. copied crolharwiaa reproduced PIERS-PIERCAP - P153 - REINF - BAR LIST-1/2.~ HANOI METROPOLITAN RAIL TRANSPORT PROJECT BOARD
•§
,. 19/02/10 Data Missing H IG. MalS!s
"·""""' G. Maurls h whala or In part er umd for any pru-wffhaultt. prbrwrttllln
TRU-MO TRIJ - P153 -COT THi=P- DANH MIJC COT THi:P -1 /231/01/10 Frlstl•ua H 3.MalS!s
·""""' BAN DIJ AN elJONG sATeO THI HA NQI pmrmlalan d HRB.
I~
1A
PROJECT DIRECTORI GIAM tx'Jc DIJAN :
""""' """ "'"""""'
....,. ...... '"'""""
CHEF DESIG~ I CHO NHla,I Tiiltl" ~ : Bin vi nlly khOng 6tFqC phOp a~ dl.l'lg dllOI ~ hlrti lhil'c, m01 phOn hey DRAWING NO.BAN VE SO:
I2An
"''"' "'" NOIDLNsO'AElOI
""" "" Clil~ll)IHTKJ: Alain B6chereau P.Amaud
toAn bO. mA khOng 6tFqC 811' o.lrig t bl.11'41 "*'bin C)9 HRB.
PIC-TEC-GRR-WVO-J04-18233-B
'
BENDING DIAMETERS !mm!
Diameters
' • 10 ,, " • " " 22 ~ 28 ll
" " Lengths of standard hooks Imm!
,.....
" " .. n
" K 1H
•• "'
.."' '" "' '"!T1pa 1l Dlnetlr•
" ' 10 ,,
" • " n 22
" " 32 I 3& ..• r:fw'n~S
IT '" " n .. .. " " 1H
•• "' ..m
'" "' "'
"""' • • • • • • • • • • • • • • ~l!
" "
,,, 144
"' 122
"' '" "' '" "' "' '"
...
'
(Typa 11
•f!a_lllH
• • • • • • • • • • • • • • @_
,,_
" "
,,, 144 1" 122
"' '" "' '" "' "' '" '"IT •
·-·=1! • • • • • • • • • • • • • •
' ,,_
• • • • • • • • • • • • • •
·-·BAR DIMENSIONS
- THE DIMENSIONS ARE GIVEN ON THE OUTSIDE FIBER OF THE REBAR !SEE BELOW! r=.11 " " .. n .. • 1..
"' "' .... "' .....
I~
•- THE TOTAL LENGTHS ARE CALCULATED ON THE BASIS OF THE CENTERLINE.
,,_
" " .. n
" • "' "' "' .... "' .."'·-·!ISO 3766:2004 - METHOD B)
~l! • • • • • • • • • • • • • •- THE BENDING ANGLES ARE GIVEN IN DEGREES.
' ,,_
• • • • • • • • • • • • • •
I
E
·-·;t-. ~-~·
" " " " " " n M A .. ,.
"' "' ..
Y'{ ,,_
" " " " " " " M A .. ,. .."' ..IT-•
- =lf • • • • • • • • • • • • • •
' ,,_
IT-• • • • • • • • • • • • • • •
J
,J(__..,_ __..,_
~
~ CLIENT:
Iii
PROJECT IMPLEMENTATION CONSULTANT FILEN.A.MEIrt!N BAN~: SCALEI1fLE: STATUST~H~G: PROJECTIDIJAN: HANOI PILOT LIGHT METRO LINE Secti111 Nh111 ·Hanoi Railway Statioo
i
; CHOE>AuTll: lllVAN THl/C Hli;:N Dl,I' AN PIC-TIDGRR-wvo-Jll4-18234-B_,ZA.DWG - Technical Design
TUYl:N EllJONG sATDO THI THIElli:M TP HA. NOi Elofn Nh&i ·Ga Hi N(!i
• "" 31l/0<111 2nd aibmillaion oftBdlnieal dBllign ~K 3.MalSis
'·""""" SYSTRAS.A
DESIGNED BYIn11a ~ : FORMATKHO BAN -1: : DATEINGA.Y : TITlEID.I BAN/£: NHUE RIVER CROSSING
ii u " 01/10/10
"""""" H 3.MalS!s
·""""" HRB AK A1 31/01/10 VLJQT SONG NHUI;'
~
10
'''"'" """""" H 3.MalS!s
·"""""~.
"'"'" UPDATED H ~.MalS!s
"·""""" CHECKED BYsoAT: This drawil'IQ m.iat not be either lol!lnad, copied crolharwiaa reproduced PIERS-PIERCAP - P153 - REINF - BAR LIST-2 / 2' . 1C
HANOI METROPOLITAN RAIL TRANSPORT PROJECT BOARD.~
" 19/02/10 Data Missing H jG. MalS!s P.AmoOO G. Maurls h whala or In part er umd for any pru-wllhautlhB prbrwrflllln
TRU-MO TRIJ - P153 -COT THi=P- DANH MIJC COT THi:P - 212•§ BAN DIJ AN elJONG sATeO THI HA NQI pmrmlalan d HRB.
~ I~
1A 31/01/10 Frlstl•ua H 3.MalS!s
·""""" PROJECT DIRECTORIGIAM tx'Jc DIJAN : CHEF DESIG~ ICHO NHla,I THltl' ~ : DRAWING NO. BAN VE SO:
I2A
1Wri vi nlly khOng 6tFqC phOp a~ dl.l'lg dllOI ~ hlrti thil'c, m01 phOn hey
""""' """' "'"""'"'
....,.
·-· ....... Alain B6chereau P.Amaud
toAn bO. mA khOng 6tFqC 811' o.lrig t blil'l(I "*'bin C)9 HRB.
PIC-TEC-GRR-WVO-J04-18234-Bn
"''"' "'" N01DLNs(rA£lOI
""" "" Clil~ll)IHTKJ:
•
~
~
; •••
uii
I~~
.s
••
~ H
• n
v-
B
7--
0
012 33-020
(Dl2SOmm
0 011
43-020
(Dl70mm
~
0
al
VIEW 1-1
GQC NHiN 1-1
SCALE: 1/50
rt LI~.: 1/50
--v
B
3-032
01B
JIB~1J .
4-032 2er,02B
[2
23-032
001 j
23-032
002 l
t---+--+---------------+---+---1----1 ~~ru:
"' 21/1B'11
""'"'"' A.K .MauriB . Joing
"' """11 2nd submission of lechnlcal daalgn A.K
1D D1/11»10
""'"'"' A.K
v-
B
7--
"'i!l
"'
0 012
8 0 011
~
HRB
+
~
3
VIEW2-2
Gc'.>C NHIN 2-2
SCALE: 1/50
T'?LS: 1/50
PROJECT IMPLEMENTATION CONSULTANT
nrvAN THl,fC Hli;:N DI/ AN
SYSTRAS.A
1C
"""" ""'"'"' A.K
18
"""" UPDATE> A.K
·-'l-~-<'=~+==~------------+=---1==~1-.~-=,"--' HANOI ME'TROPOUTAN RAIL TRANSPORT PROJECT BOARD
1A 31/01/10 Flllll lssua
REVISION
"'"
DESCRIPTION
SO'AElOI ""y NOi DUNG sCrA.ElOI
A.K
-·m•
..,.,...T
PROJECTDIRECTORIGINAeocDIJ AN :
Alain B~chereau
.Arnaud BAN DI/AN DU'bNG sA.TE0THI HANQI
(Hl'CflE!QI
ailrtil;Mllil~~
--v
B
4-032 "J1C~01cl
1
J ·
6-032
02 r 2cr,[2
001
002
8
~
FILE NAMEITtN aMIv£ :
PIC-TEC-GRR-IHVOJ04-'IUll>6_llADWG
DESIGNED BYTHltrK£ :
A.K
CHECKEDBYsoAT:
G. Maurls
CHIEF CESIGNERCll) NHla,lTHl£'TK£ :
P.Amaud
"'i!l
"'
SCALEITYLe :
FORMATKHO BAN ve:
A1
v- t
7-
7--
0 012
0 011
STATUSTfNHTR6NG:
Technical Design
DATEINGAY:
31/01/10
This d'awilg must not be eilhlr IDMed, o:ipi!lcl orOlharwiae rep'Ocluoed
In - er h pmrt ar uucl for •nr prupmaWlhoullho prkrwrlllln
pennllillon ol HRB.
017 l5-032
1111300
4-032
4-032
~ 12-032
SECTION 3-3
M.;T CAT 3-3
SCALE: 1/50
Ti'LI;.: 1/50
9-032
~ --v
01[ l
r
12~
[2 ~
1'°I[1
I I'°
~1]
12AI
[2
01B l
02B r
"'i!l
"'
001
002
8
~
NOTES:--------------~
GHI CHI.I:
1. REINFORCEMENT YIELD STRENGTH: FY=420 MPA.
1. CUONG £>0 CHAY COA COT TH!:P fc=420 Mpa.
2. CONCRETE COVER: C=50 MM.
2. LdP ee TONG ~ ve: c=so mm
PROJECTID1JAN : HANOI PILOT LIGHT METRO LINE Sedian Nhon •Hanci RailwayStation
Tuv£N SOONG sAT E>0 THI THI -E>li:M TP HA N()I Elofn N~n ·Ga Hil NOi
mLEl~NBANt, NHUE RIVER CROSSING
WQT SONG NHUe
DR.WING NO.IBAN~ SO :
PIERS - P154 - REINF
lRIJ - P154 - COT THl:P
PIC-TEC-GRR-WVO-J04-18240-B 3A
~
~
2 •;; •ii
uI~~
.s
••
~ H
• n
----===--===--==-=--~ r
I
I
I
~J
I
I
I
I
t L_ 01[ ~------------ ~ ----------------------
_ _ _SECTION A-A - - -
MATCATA-A
"' 21/1B'11
"' """11
1D D1/11»10
1C
""""
""'"'"'2nd submission of lechnlcal daalgn
""'"'"'
""'"'"'
SCALE: 1/10
TY Le: 1/10
A.K
A.K
A.K
A.K
0020 012
CLIENT:
a-io E>Au ru:
.MauriB . Joing
.""'"' ·""""'
·""""'
HRB
·""""' HANOI ME'TROPOUTAN RAIL TRANSPORT PROJECT BOARD18
""""1A 31/01/10
UPDATE> A.K
·""""'Flllll lssua A.K
.""'"' ·""""'
I---+=-+.,,--------------+=---"'="-"'-='"---' BAN DI/AN DU'bNG sA.TE0THI HANQI
REVISION
"'"
DESCRIPTION
-· """'" (Hl'CflE!QI
SO'AElOI ""y NOi DUNG sCrA.ElOI m• ..T ailrtil;Mllil~~
0020 012
SECTION C-C
MATCATC-C
SCALE: 1/10
Ti'Le:: 1/10
SECTION D-D
MATCATD-D
SCALE: 1/10
Ti'Le:: 1/10
PROJECT IMPLEMENTATION CONSULTANT
nrvAN THl,fC Hli;:N DI/ AN
SYSTRAS.A
PROJECTDIRECTORIGINAeocDIJ AN :
Alain B~chereau
FILE NAMEITtN aMIv£ :
PIC-TEC-GRR-IHVOJGl-111241-B_llADWG
DESIGNED BYTHltrK£ :
A.K
CHECKEDBYsoAT:
G. Maurls
CHIEF CESIGNERCll) NHla,lTHl£'TKe :
P.Amaud
SCALEITYLe :
FORMATKHO BAN ve:
A1
0110
SECTION E-E
MATCATE-E
SCALE: 1/10
TYLS: 1110
002 l
SECTION F-F
MAT CAT F-F
STATUSTfNHTR6NG:
Technical Design
DATEINGAY:
31/01/10
SCALE: 1/10
TY Le: 1/10
NOTES: _ _'-..::::::::::::::1________
GHI CHI.I:
1. REINFORCEMENTYIELO STRENGTH: FY=420 MPA.
1. CUONG £>0 CHAY COA COT TH!:P fc=420 Mpa.
2. CONCRETE COVER: C=50 MM.
2. LdP ee TONG ~ ve: c=5D mm
PROJECTID1JAN : HANOI PILOT LIGHT METRO LINE Sedian Nhon •Hanci RailwayStation
Tuv£N SOONG sAT E>0 THI THI -E>li:M TP HA N()I Elofn N~n. Ga Hil NOi
mLEl~NBANt, NHUE RIVER CROSSING
WQT SONG NHUe
This d'awilg must not be silhlr IDMed, o:ipi!lcl orOlharwiae rep'Ocluoed
In - er h pmrt ar uucl for any prupmaWlhoullho prkrwrlllln
pennllillon ol HRB.
PIERS - P154 - REINF
TRIJ - P154 - COT THl:P
Mn vii My kh!lng 4JVC ~RI) d,lng - mol h"rlh lh)c, m(ll phln hrly
kllln ~ mll kh!lng41VC..,Mngf'blngvllnbllncilll HRB.
DR.WING NO.IBANVESO :
PIC-TEC-GRR-WVO-J04-18241-B 3A
c c
Total Lengths and Weights
No. 1~fNboa'r Total IL th No. lofNbo,"r
Number of members 1
Boe Type phape Bend Boe Type Total
Length
phape Bend
mark ecd of m'°ch No. eng Code Type D1mens1ons Shope R'" mark ;od of 1n ~ach No Code Type D1mens1ons Shope R'" Type T Type R BENDING DIAMETERS (mm)
size memb memb size memb memb
mm mm mm a mm mm mm a D1<imeters 6 8 10 12 14 16 18 20 22 25 28 32 36 40
Total Weight Total Total Weight Total
~ ~
Diamet-er Length per unit Weight Length per unit Weight Hooks
36 48 60 12 84 96 108 120 132 150 224 256 288 320
001 031 1 13 13 11700 11 1 A=11215 B=5B6 011 010 1 43 43 6690 99 1 A=B40 R=B27 lml (kg/ml [kg) lml (kg/ml (kg) D
IType 11
Frames
L•p =1xB40
6 0 0.222 0 00 !Type 21 24 32 40 48 56 64 108 120 132 150 224 256 288 320
~
8 0 0 395 0.00
Hooks
0 0 0 0 0 0 0 0 0 0 0 0 0 0
01A 031 1 11 11 2150 00 A=2147 i:::::;::::::J 012 010 1 33 33 6690 99 1 A=B40 R=B2'J R
(Type 1)
10 0 0 617 0.00 Frame>
0 0 0 0 0 0 0 0 0 0 0 0 0 0Lop.=1'840 [Type 21
~ ~
11 0 D888 0 00
01B 031 1 3 3 3590 11 1 A=1419 B=22H 011 031 1 s s 4630 11 1 A=1035 B=3700 14 0 1.210 0.00
16 0 1.580 0.00
~
18 0 2.000 0 00 BAR DIMENSIONS
01[ 031 1 4 4 5190 11 1 A=1419 B=36B
10 SOB 2.4 70 1255.85 - THE DIMENSIONS ARE GIVEN ON THE OUTSIDE FIBER OF THE REBAR !SEE BELOW]
11 0 2 980 0.00 - THE TOTAL LENGTHS ARE CALCULATED ON THE BASIS OF THE CENTERLINE
010 031 1 4 4 3750 00 A=3747 i:::::;::::::J 15 0 3 850 0.00 llSO 3766·2004 - METHOD Bl
18 0 4.830 0.00 - THE BENDING ANGLES ARE GIVEN IN DEGREES
~
31 713 6 310 4501 24
r'l&i
002 031 1 13 13 9820 11 1 A=9333 B=586
36 0 7 990 0.00
40 0 9.860 0.00
02A 031 1 9 9 4070 00 A=4067 i:::::;::::::J
~
Type T Type R
02B 031 1 4 4 5400 11 1 A=1419 B=4086 Total Length - Bended: 1122
Total Length - Straight: 100 a
~
Total Length lml: 1222
02[ 031 1 6 6 7000 11 1 A=1418 B=5686
"'Total Weight - Bended 5126
Total Weight- - St-raight- · 631
020 031 1 4 4 5670 00 A=5667 i:::::;::::::J Total Weight (kg): 5757 •J
Mean Size [mml GENERAL WEIGHT kg
YII
27.6
I I
5757
I
AcmoCAD•-DTP- Acm•CAD•-DTP- Acm•[AD• Dfe
Acm•tAD•-OTP-
CLIENT:
11
PROJECT IMPLEMENTATION CONSULTANT FILE NAMEITtN aMIv£ : SCALEITY Le: STATUS TfNHTR6NG: PROJECTIDIJAN : HANOI PILOT LIGHT METRO LINE Sedian Nhon •Hanci RailwayStation
• a-io E>Au ru: TJVAN THl,fC Hli;:N DI/ AN PIC-TEC-GRR-ll'No.ID4-1~ - Technical Design
Tuv£N SOONG sAT E>0 THI THI -E>li:M TP HA N()I Elofn N~n ·Ga Hil NOi
• SYSTRAS.A
u "' 21/11Y11
""""'"' A.K 3.Maurls . JOog
HRB
DESIGNED BY THltr K£ : FORMATKHO BAN ve: DATEINGAY: TTTlEITtN B.MiVE: NHUE RIVER CROSSING
2A
"""'"' 2nd aubmllalan ar lectmlcal daalgn A.K ].Maurls
·"'""'
A.K A1 23/06/10 WQT SONG NHUe
~~ 1C D1/11Y1D
""""'"' A.K G.Maur1s
·"'""' CHECKEDBYsoAT: This d'awilg must not be eilhlr IDMed, o:ipisd orOlharwiae rep'Ocluoed PIERS - P154 - REINF - BAR LIST.s ,. """" """"'"' A.K ~.Maurls P.Amaud HANOI METROPOLITAN RAIL TRANSPORT PROJECT BOARD
G. Maurls In - er h pmrt ar uled for •nr prupmewthoullho prlarwrlllln
•• BAN·~ AN oU'ONo sAroO THI HANQI pmnnmlon ol HRB. TRV · P154 · COT THi:.P · DANH MVC COT TH!=:P
H 1A
"""" Flllll lsaua A.K 3.Maurls
·"'""'REVISION
""" DESCRIPTION
-· ..,.,. (Hl'CflE!QI
PROJECTDIRECTORIGINAeocDIJ AN : CHIEF CESIGNERICll) NHla,lTHl£'T Ke : Mn vii My kh!lng 4JVC ~RI) d,lng - mol h"rlh lll)c, rr(ll phln hrly DR.WING NO.IBAN~ SO :
I3An SO'AElOI ""y NOi DUNG sO'AElOI m• ..T ailrtil;Mllil~~ Alain B~chereau P.Amaud
kllln ~ mll kh!lng41VC..,Mngf'blngvllnbllncilll HRB.
PIC-TEC-GRR-WVO-J04-18242-B
~
~
~ •••
uii
I~~
.s
••
~ H
• n
@

I
041 043
ml ~
(o41jo4)'.,m;
~~
~
~ ~
(o41Xo44Xo4~
----- - ___..,
~=~ - ___..,
""~ ~~(o41Xo4)'.,o4~
@
- ~
-- -
-
041
10~ y10
- ~
ZONE-D (STIRRUPS & TIES @240)
KHU Vl/C -D (COT DAI & BU0C@240)
(021)
~ ~ ~
~ ~ ~
~ ~ ~
>--- >--- >---
>--- >--- >------
~ ~ ~
~
---- ~
----
~ ~ ~
7
10L.J
8
ZONE-C (STIRRUPS@ 120 & TIES @240)
KHU VIJC -C (COT DAl@120 & BU0C@240)
J1o (030)
I
001
88 @)022
~
::::::= ~
I u...L.L.I
====:;;; ~
- ~
I I
I
- ----- / . I
-
----- - -
:
'
:e-
'
---
~
'
( 
'
- ~
I  I
I I I
I
- ~
II I I
~-
I=' - --- --- ------ --- ---++---- --- ---++ m++--- --- --- --°--+042 046
I I I /  I I 1
1
:::::::::::::;! 1:1
I I I  I I I I
042 046  I I  / I I I
----
042 046 =
042 046
042 046
=
042 046
=
042 046
=
042 046
=
I
==I ---- ~ ~
- -- - t----- ---- ---
= = = =
=== ~ ~ ~
=== ~ ~ ~
= = = =
7
~10
008
10
CJ J8 8 ZONE-8 (STIRRUPS & TIES @240)
KHU Vl,IC -B (COT DAI & BU0C@240)
t---+---+---------------+---_,,___,___--< ~~ru:
"' 21/1B'11
""'"'"' A.K .MauriB . Joing
"' """11 2nd submission of lechnlcal daalgn A.K
1D 01/11»10
""'"'"' A.K HRB
-
= ==== l:J
--- ~
= =l:J- --- -
= = = 1:1
= = === l:J
= ==== l:J
= = = 1:1
~
~
002
HALF PLAN VIEW A-A
NO'A MAT BANG A-A
SCALE: 1/10
TtL.E; 1/10
PROJECT IMPLEMENTATION CONSULTANT
ruvAN THl,fC Hli;:N Dl,f AN
SYSTRAS.A
1C
"""" ""'"'"' A.K
18
"""" Upo..d A.K
__,
t-=-F==-+==-------------+"~-_,F"=~1-_~_=~,-< HANOI METROPOLITAN RAIL TRANSPORT PROJECT BOARD
1A 1""''" Flllll lssua
REVISION
"'"
DESCRIPTION
SO'AElOI ""y NOi DUNG sCrA.ElOi
A.K
-·m•
..,.,...T
.Arnaud BAN DI/AN DllbNG sA.To0THI HANQI
(Hl'CflE!QI
ailrtil;llillil~~
PROJECTDIRECTORIGINAeocDIJ AN :
Alain B~chereau
~
lmj
m
FILE NAMEITtN aMiv£ :
PIC-TEC-GRR-IHVOJ04-1112111>6_l1ADWG
DESIGNED BYTHltrK£ :
A.K
CHECKEDBYsoAT:
G. Maurls
CHIEF CESIGNERCll) NHla,lTHl£'TK£ :
P.Amaud
I I I
1
t1
I I I
I I}--- ---I /
I Ii_ ______ :..::J !
 I
 I / I
 I
 I______ _J
' I L
I
', I ///
I
I  I I
I  I I
I
 I
II /
I
I /
I1 ; I
I /
/
I I
I
- - -- I
I - - - --- I
I I
L _____________________
---------------------~
I
ZONE-A (STIRRUPS & TIES @120)
KHU Vl/C -A (COT DAI & BU0C@120)
SCALEITYLe :
FORMATKHO BAN ve:
A1
STATUS TfNHTR6NG:
Technical Design
DATEINGAY:
19/02/10
This d'awilg must not be eilhlr IDMed, o:ipisd orOlharwiae rep'Ocluoed
In - ot h pmrt ot uled for •nr prupmeWlhoullho prkrwrlllln
pmnnllillon ol HRB.
NOTES:---------------
GHICHIJ:
1. REINFORCEMENT YIELD STRENGTH: FY=420 MPA.
1. CUONG £>0 CHAY COA COT TH!:P fc=420 Mpa.
2. CONCRETE COVER: C=50 MM.
2. LdP ee TONG BMl ve: c=5D mm
PROJECTID1JAN : HANOI PILOT LIGHT METRO LINE Sedian Nhon •Hanci RailwayStation
Tuv£N SOONG sAT E>0 THI THI -E>li:M TP HA N()I Elofn N~n ·Ga Hil NOi
mLEl~NBANt, NHUE RIVER CROSSING
WQT SONG NHUe
PIER CAPS - P151-P154 - REINF -1/7
MO TRV • P151-P154 ·COT THi:.P • 1I7
DR.WING NO.IBANVESO :
PIC-TEC-GRR-WVO-J04-18260-B 3A
~
~
2 •iii •ii
uI~~
.s
••
~ H
• n
ZONE-D (STIRRUPS & TIES @240)
KHU Vl,IC D (COT DAI & BU0C@240)
@
-
(021) 022 023
I
041 043
~ -- ~~:;; ~
i
~
(o41Xo44Xo4~
I
!:=!=
•
I -- -
~
-
--
--
~ -- ~
~ =--- - --
- --
-- -- 1----
----r---
041 ====E
§
@42Xo46Xo47Xo4~ ~
I
~ ~
---
042'f046'fo47J04~ -==r--
(042X046XmXo'' =r - -
042 046 047 049
042'fo45'fo47Jo4~
(042X046Xm, =r - -
~
r,,l--
- ~-- -- - -- - --- ----
= = ~- =
= u
~
~ =
~- -
-
u
~
,llZONE-B (STIRRUPS & TIES @240)
KHU Vl,IC -B (COT DAI & BU0C@240)
t---+---+---------------+---_,,___,___--< ~~ru:
"' 21/11Y11
2A
"""'"'
Updated A. K . Maurls ..laing
HRB
=
I
=
"
"'
,I, 051
HALF PLAN VIEW 8-8
NliA MAT BANG B-B
SCALE: 1/10
TI' LS: 1/10
PROJECT IMPLEMENTATION CONSULTANT
nrvAN THl,fC Hli;:N DI/ AN
SYSTRAS.A
1C
"""",.
""""
Updated A. K . Ameud
t-=-F==-+u~,~-=-------------+A~.~K---F==--<e.~-=~,---< HANOI METROPOLITAN RAIL TRANSPORT PROJECT BOARD
Flllll lssua A. K .Ameud BAN DI/AN DIJ'bNG sA.T£>0THI HANQI1A
'""''"REVISION
"'"SO'AElOI ""y DESCRIPTION
NOi DUNG sO'AElOI
IEIH!lllr CIEOO!lllr (Hl'CflE!QI
Hr!G: lni.T ailrtil;Mllil~IG:
PROJECTDIRECTORIGINAeocDIJ AN :
Alain B~chereau
- e-
--
I
026~
~
051
FILE NAMEITtN aMIv£ :
PIC-TEC-GRR-IHVOJGl-111281-B_llADWG
DESIGNED BYTHltrK£ :
A.K
CHECKEDBYsoAT:
G. Maurls
CHIEF CESIGNERICll) NHla,lTHl£TK£ :
P.Amaud
030)
I
111
I
1!1
I
1!1I
1!1 I
1!1 I
I
111
I
I
I
1!1

I

1!1
I
- r-
I
I
,I;
SCALEITYLe :
FORMATKHO BAN ve:
A1
ZONE-C (STIRRUPS@ 120 & TIES @240)
KHU Vl,IC C (COT D 1@120 & BU0C@240)- ..
I
I
r- ---------------------,
I I
-v
I
+> I
I/ I
- - I
 I
•
 r I
 I
'
' I
 I
 I
:
I
I
~
/ 
I
l  I I I
I I I
I I
I I I/
-- --~ I I I
I
/ I
/ '
/
I/
/ I
- - /
/
/
:
- - c c. - - - - - - r-
____________ _J
I
e I
003 069
~ c :J
051
ZONE-A (STIRRUPS & TIES @120)
KHU Vl,IC -A (COT DAI & BU0C@120)
STATUSTfNHTR6NG:
Technical Design
DATEINGAY:
19/02110
NOTES:---------------
GHICHIJ:
1. REINFORCEMENT YIELD STRENGTH: FY=420 MPA.
1. CUONG £>0 CHAY COA COT TH!:P fc=420 Mpa.
2. CONCRETE COVER: C=50 MM.
2. LdP ee TONG BMl ve: c=5D mm
PROJECTID1JAN : HANOI PILOT LIGHT METRO LINE Sedian Nhon •Hanci RailwayStation
Tuv£N SOONG sAT E>0 THI THI -E>li:M TP HA N()I Elofn N~n ·Ga Hil NOi
mLEl~NBANt, NHUE RIVER CROSSING
WQT SONG NHUe
This d'awilg must not be eilhlr IDMed, o:ipisd orOlharwiae rep'Ocluoed
ln-crhpmrtcruledfor•nrprupmelllllhoullhoprkrwrlllln
pmnnllillon ol HRB.
PIER CAPS - P151-P154 - REINF -2 / 7
MO TRV •P151-P154 -COT THi:_p. 2 I 7
DR.WING NO.IBANVESO :
PIC-TEC-GRR-WVO-J04-18261-B 3A
ZONE-B&D
KHUVVC-B&D
7 (o41(o42) ~ ~I I I I (o2D I I I /I,,
" " " "jj jj jj jj jj jj
A


002 ~
[]04 -
,__,
~
;=!== ;=== ;== ;=== d~ I=
=031 ~ ~
,_ ~ ~ ~
____]__
1ol.J J108 8
~®---- 4 I·= ;=== ;=!== ;=== ;== ;===
I=
=031 ~ ~
,_ ~ ~ ~
1
________ ---------~l;JA!L-_1_
CHI Tli:t'-1

I
I I
I
I
:~I
I I/ I I I I /(o25,/ I
J J. J I J J.
' " " " "
'~~
~~
051
~~008
____]__
10~ y10
063
------------- ---------

I
063
I I
I
I
I
I
I
I
064
I
~~f§Efif§----<061 D
11------~---uo62 11
-----------------------------~
I
I
)
011
051 ~~ ,__
'------- --------- - r--.
----------r--- ,__________---------005
~------051
- ------- -------'--------051 026 '---..~ ~ --------
022 023
----~-
CJ'7~
~ -
ELEVATION VIEW C-C
051 -~
MATJl~f~~ C-C @
Ti' LE: 1110
525 LJTO BE ADJUSTED IN CASE OF CONFLICT WITH DRAINAGE PIPE
~~
SE: e1eu CHINH NEU co XUNG f>OTVO'I EllJO'NG ONG THoAT NLIO'C
~---tc063
MESH & JACK DETAIL
I
III
'11
~
ZONE-A&C
KHUVVC-A&C
=:dJTO BE ADJUSTED IN CASE OF CONFLICT WITH DRAINAGE PIPE
SE: e1eu CHINH NEU co XUNG DOT VO'I El/ONG ONG TI-IOAT NUO'C
---
069 003
~§49)
I I /(021 I I I
I ,'
"
I
I
I
I
'I
~ I ~
~
~ ,-------@~
'I
I
I
I
~
:
I I
~
051
r
~LJ
~
~
DETAIL-1 (PEDSTAL REINFORCEMENT) CHI TIET LU'OI & KICH ~~6~~,= -------~
CHI TIET-1 (COT THEP Bl; E>O') SCALE:1NO 1.REINFORCEMENTYIELDSTRENGTH:FY=420MPA.
SCALE: 1110 TI'LS: 1110 1. CUONG £>0 CHAYC0ACOTTH!:Pfc=420 Mpa.
rt LS: 1110 2. CONCRETE COVER: C=50 MM.
~ 2. LdP BE TONG BM) ve: c=50 mm
~1-~~~~~~~~~~~~~~~~~~~~~~~~~~~~~~~~~~~~~~~~~~~~~~~~~~~~~~~~~~~~~~~~~~~~~~~~~~~~~"--1
; •••
uii
I~~
.s
••
~ H
• n
t---+--+---------------+---+---1-----1 CLCHIO~:.,..., •·. 11 PROJECT IMPLEMENTATION CONSULTANT FILE NAMEltN a.i.Nv£: SCALE TYl.E:: STATUSTfNHTR6NG: PROJECTl[)IJAN: HANOI PILOT LIGHT METRO LINE Sedian Nhon. Hanci RailwayStation
CllU •u • nrvAN THIJC Hli;:N DI/ AN P1c-TEC-GRR-W'lo.Kl4-11121H_MDWG Technical Design TUY£N aOONG sAT E>O THI THI -E>li:M TP HA N()I E!ofn N~n. Ga Hil NOi
SYSTRAS.A
DESIGNEDBYITHltTK£: FORMATIKHOBANVE: DATEINGAY: TTTl.El'ftNB..i.NE.: NHUE RIVER CROSSING
"' 21/11Y11
""""'"" A.K
2A
"""'"' 2nd aubmllalan ar lectmlcal daalgn A.K HRB
1C
"""'" """"'"" A.K
,. """'" Upo..d A.K ·"'""'l-~-l"=~+==~------------+=---1==~1-.~-=,"--' HANOI METROPOLITAN RAIL TRANSPORT PROJECT BOARD
1A
'""""" Flllll lssua A.K .Arnaud BAN DI/AN DllbNG sA.To0THI HANQI
REVISION
"'"
DESCRIPTION
-· CIEOO!lllr (Hl'CflE!QI
SO'AElOI ""y NOi DUNG sO'A00 m• lni.T ailrtil;Mllil~~
A. K A1 19/02110 WQT SONG NHUe
CHECKEDBYlsoAT: "''...,.••~••"•.,.,~,.,-• .....,..-""" PIER CAPS - P151-P154 - REINF -3 / 7
G. Maurls ::.:::::-i:i'."°uuc1ror•nrprupmni1tticut111op11ar'Mllan MO TRV. P151-P154 -COTTHi:.P-3/7
PROJECTDIRECTORIGINAeocDIJ AN : CHIEF CESIGNERCll) NHla,lTHl£'TK£ : Mn v11 My kh!lng 4ivc ~ m a,ing - mo111-..11lh)c, m(ll phln hrly DR.WING NO.BAN VE SO :
Alain B~chereau P.Amaud ~... ~-.-~,,..,..., __ a,~. PIC-TEC-GRR-WVO-J04-18262-B 3A
~
~
~
•ii
I
~•
(~-
~ 1- I
I
I
I I I
A
"jj I
I
L ~
~ I-<
Llllt= -~
-Ol1 ~ ~
@ ... - -- -Ol1 ~ ~
00
B
~~Ill
DETAIL-2
Y'CHITI~-2
I
'
u I
II
I
I
_J
- -- -~ ~
- -- -~ ~
I
ZONE-B&D
KHUVVC-B&D
(041)§42)
I (o2D I
001
~
2
(o41)
I I
I I I
-
-~
- -
- -~ ~
~
~051 ~
051 r--~
-------------
 029 -===-=J--.- t----__067
4
~
I (oiO) I
1"02s
~
A
-.]_.)
(04lJ045)
I
1
'027
~
ZONE-A&C
KHUVVC-A&C
~
~
~
I
'
__J__
10[ ]10u u ---8 8
I I 007 011
@
~
~
~
~
0
r---______ '------.__'------
051
~ --------
~
-~
'
i
067
I I I
068
068
065 0
n------i----<066 n
11----tt--il-->r---~---<·066
DETAIL-2 (PEDSTAL REINFORCEMENT)
CHI Tl~T-2 (COT TH~P Bl; ElO')
SCALE: 1110
Ttu;.: 1/10
!!I~~
~
~
18 067
"'
~~I355~061
MESH & JACK DETAIL
CHI Tl~T LU'O'I &KICH
SCALE: 1/10
Ti'LE: 1110
•
CLIENT:1--4---+-------------4------t---;-----t a-iOElAuru:
•
HRBu "' 21/11Y11
""""'"' A.K
2A
"""'"' 2nd aubmllalan ar lectmlcal daalgn A.K
."'"'
051 026 ----- ~ ------ -------
- !-__
ELEVATION VIEW D-D
M~T ElO'NG D-D
SCALE: 1/10
Ti'LE: 1110
PROJECT IMPLEMENTATION CONSULTANT
nrvAN THl,fC Hli;:N DI/ AN
SYSTRAS.A
051
'--- ,.__~,.__
051
FILE NAMEITtN aMIv£ : SCALEITYLe :
PIC-TEC-GRR-IHVOJ04-'lll26:Hl_llADWG
DESIGNED BYTHltrK£ : FORMATKHO BAN ve:
A.K A1
' I
~
'
051
STATUSTfNHTR6NG:
Technical Design
DATEINGAY:
19/02/10
·-'l-"'--+==0-->==-----------+'~--+--+-.----,-I HANOI ME'TROPOUTAN RAIL TRANSPORT PROJECT BOARD
~~ 1C
"""" """"'"' A.K
.s ,. """" Upo..d A.K
••
CHECKED BYsoAT: Thisd'awilg must not be eilhlr loaned,o:ipiecl orOlharwiaerei:roc!ID!ld
G. Maurls ln-crhpmrtcruledfor•nrprupmewthoullhoprkrwrlllln
H 1A
'""'"' Flllll lssua
REVISION
"'"
DESCRIPTION
n SO'AElOI ""y NOi DUNG sCrA.ElOI
A.K
-·m• ""'"'"..T
.Arnaud BAN DI/AN DU'bNG sA.TE0THI HANQI
(Hl'CflE!QI
ailrtil;Mllil~~
PROJECTDIRECTORIGINAeocDIJ AN :
f========---1 pmnnmlono!HRB.
CHIEF CESIGNERICll) NHla,lTHltrK£ : Mn v11 nay kh!lng 4ivc ~ ma,ing - moi hhh lh)c, m(ll phln tay
Alain B~chereau P.Amaud ta11n~mllkh!lng4JVC..,~t~vllnbinC11111HRB.
NOTES:~------------­
GHICHIJ:
1. REINFORCEMENT YIELD STRENGTH: FY=420 MPA.
1. CUONG £>0 CHAY COA COT TH!:P fc=420 Mpa.
2. CONCRETE COVER: C=50 MM.
2. LdP ee TONG BMl ve: c=5D mm
PROJECTID1JAN : HANOI PILOT LIGHT METRO LINE Sedian Nhon •Hanci RailwayStation
Tuv£N SOONG sAT E>0 THI THI -E>li:M TP HA N()I Elofn N~n ·Ga Hil NOi
mLE~NBANt, NHUE RIVER CROSSING
WQT SONG NHUe
PIER CAPS - P151-P154 - REINF -4 / 7
MO TRV • P151-P154 -COT THi:.P- 4 I 7
DR.WING NO.IBANVESO :
PIC-TEC-GRR-WVO-J04-18263-B 3A
[
~
~
:;: •••
uii
I~~
.s
••
~ H
• n
II
TO BE ADJUSTED IN CASE OF CONFLICT WITH DRAINAGE PIPE
; · ·01oU CHINH ~CU XUNG eQT •ul 0"'1NG <i3HOAT Nuuu
I
I I ~I I ~I I ~I 1iT 1'iiil,-,..f-1 """~-""11""""""
1
1""""""1""""""1""""""
1
1""'"'1...'.1"" 1(0211~}--------+...
rr
[~r-~~-1-lf~·1--~1--~-1--~-1------1
I ' ~c--------"1008O---l--+->
1
~--t~--tl----11---1--l--~rl------1042
(§J)----i-i--.1~',_~I
•
(Oo:0
SECTION 1-1
MAT CAT 1-1
SCALE: 1/10
Ti't..,e.: 1/10
'
II II II
1iT1if1if1
021)----r----+~-fl
II
II
I I I
TO BE ADJUSTED IN CASE OF CONFLICT WITH DRAINAGE PIPE
/So01oU CHINH ~CU XUNGeQTVUl0uuNG U~HOAT Nuuu
I
li l I l l
------1008
(Ol}------t/ 11----.~1c-o-~..----.~-----~..----o-~+-i.J-_'-~~--1€31
l-L~-t-""'l'--P---~~,,.....,...----t--'lt---t-~'-t---f"---t~~---f"--t----t
;'ltl--i-J..~_J' @ ' @ '' 1l
@-L' ~
= - .~
I
I I I I
~
SECTION 2-2
MAT CAT 2-2
SCALE: 1/10
Ti' LI~:: 1/10
NOTES:--------------~
GHICHIJ:
1. REINFORCEMENT YIELD STRENGTH: FY=420 MPA.
1. CUONG £>0 CHAY COA COT TH!:P fc=420 Mpa.
2. CONCRETE COVER: C=50 MM.
2. LdP ee TONG BMl ve: c=5D mm
t---+--+---------------+---+---1-----1 ~~TU: PROJECT IMPLEMENTATION CONSULTANT
ruvAN THl,fC Hli;:N Dl,f AN
SYSTRAS.A
FILE NAMEITtN aMIv£ : SCALEITYLE::
PIC-TEC-GRR-IHVOJ04-1112&Hi_l1ADWG
DESIGNED BYTHltTK£ : FORMATKHO BAN ve:
STATUS TfNHTR6NG:
Technical Design
DATEINGAY:
19/02/10
PROJECTID1JAN : HANOI PILOT LIGHT METRO LINE Sediorl Nhon •Hanci RailwayStation
Tuv£N -E>LIONG sAT E>0 THI THI -E>li:M TP HA N()I Elofn N~n ·Ga Hil NOi
mLEl~NBANt, NHUE RIVER CROSSING
WQT SONG NHUe"' 21/11Y11
""""'"' A.K
2A
"""'"' 2nd aubmllalan ar lectmlcal daalgn A.K HRB."'"'
1C
"""" """"'"' A.K
,.
"""" Upo..d A.K ·"'""'l-~-l"=~+==~------------+=---1==~1-.~-=,'-' HANOI ME'TROPOUTAN RAIL TRANSPORT PROJECT BOARD
1A
'""''" Flllll lsaua
REVISION
"'"
DESCRIPTION
SO'AElOI
""• NOi DUNG sCrA00
A.K
-·m•
,,.,.,...T
.Arnaud BAN DI/AN DU'bNG sA.To0THI HANQI
(Hl'CflE!QI
ailrtil;Mllil~~
A.K
CHECKEDBYsoAT:
G. Maurls
PROJECTDIRECTORIGINAeocDIJ AN : CHIEF CESIGNERICll) NHla,lTHl£TK£ :
Alain B~chereau P.Amaud
A1
This d'awilg must not be eilhlr IDMed, o:ipisd orOlharwiae rep'Ocluoed
ln-crhpmrtaruuclfor•nrprupmelllllhoullhoprlarwrlllln
pmnnllillon ol HRB.
PIER CAPS - P151-P154 - REINF -5/7
MO TRV • P151-P154 ·COT THi:.P • 517
DR.WING NO.IBANVESO :
PIC-TEC-GRR-WVO-J04-18264-B 3A
~
~
•
••••
uii
I~~
.s
••
~ H
• n
[8
[8
~I I I I I I I I
j 11)~1 ~1
1 ~1 ~1
1~1 ~1
1 0
~~
~0
I
' ~
•
- r
@)
-
I
~
•
c
---v
030 (]
' r -
009
r -
r -
032 ~
' r -
r -
r -
032
'
r -
~
c
I I I I I I
I~II ~I ~I ~I ~II ~I •1.IJ ---v
I •r~
@----1-r-
·~ .r~
8-----1 I
~r- --------@)
~
• •r~
~
r@
r~
@J
' ~
~·
•r~
•r~
009
r@ I r~
@J
'
,-
&-
•r~
&-~ TO BE ADJUSTED IN CASE OF CONFLICT WITH DRAINAGE PIPE TO BE ADJUSTED IN CASE OF CONFLICT WITH DRAINAGE PIPE
@L
~·
---- ~
047
~ I......
"""
~
' r -
;si;E1eucHTNH NeucOXUNG~ v6'I E>UONG ONG THOAT NU¢C
003 I
'
Ii Iii z
I
069
I
J .
I I
I I I I
~
SECTION 3-3
MAT CAT 3-3
SCALE: 1/10
T"r'LS:1110
bl/I Z I ii ii JI I JI 11
I I
I
I ,,
I
_L)'i--I
I
.,
I
1: I ,....
€YI tyI ............_,,
051
t---+--+---------------+---+---1------1 ~~ru:
"' 21/11Y11
""""'"' A.K
2A
"""'"' 2nd aubmllalan ar lectmlcal daalgn A.K HRB."'"'
1C
"""" """"'"' A.K
,.
"""" Upo..d A.K ·"'""'l-~-<'=~+==~------------+=---1==~1-.~-=,'"-' HANOI METROPOLITAN RAIL TRANSPORT PROJECT BOARD
1A
'""''" Flllll lssua
REVISION
"'"
DESCRIPTION
SO'AElOI ""y NOi DUNG sCrA.ElOI
A.K
-·m•
..,.,...T
.Arnaud BAN DI/AN DllbNG sA.To0THI HANQI
(Hl'CflE!QI
ailrtil;Mllil~~
'o2s ...... ,,
~
048 1
PROJECT IMPLEMENTATION CONSULTANT
ruvAN THl,fC Hli;:N Dl,f AN
SYSTRAS.A
PROJECTDIRECTORIGINAeocDIJ AN :
Alain B~chereau
~
~· •r~
;si;e1eucHINH Nt:UCOXUN~ TVOi E>UONG ONG THoAT NU'O'c
@ 003 I ~
I '
,f ~ ---- ~
Ii ii I ii
069
047 / " I
I I
I
I
047 ~ .......•
I
'047
~-·
I
I
!
047
I
"'"' I
047
i
~~' J I
047 - I
FILE NAMEITtN aMIv£ :
PIC-TEC-GRR-IHVOJ04-111265-6_l1ADWG
DESIGNED BYTHltrK£ :
A.K
CHECKEDBYsoAT:
G. Maurls
CHIEF CESIGNERICll) NHla,lTHl£TK£ :
P.Amaud
~
SCALEITYLe :
J I
I
I I I
I I
~
SECTION 4-4
MATCAT 4-4
SCALE: 1/10
Ti' LE: 1110
STATUSTfNHTR6NG:
I
Technical Design
FORMATKHO BAN ve: DATEINGAY:
19/02/10A1
I
This d'awilg must not be eilhlr IDMed, o:ipisd orOlharwiae rep'Ocluoed
ln-crhpmrtcruledfor•nrprupmelllllhoullhoprkrwrlllln
pmnnllillon ol HRB.
I
j II I
ii z I ii ii ii ii Ii ]
I
I
I I
I '
I
// 048
_-·v 051
¥
"
/~
NOTES:--------------~
GHICHIJ:
1. REINFORCEMENT YIELD STRENGTH: FY=420 MPA.
1. CUONG £>0 CHAY COA COT TH!:P fc=420 Mpa.
2. CONCRETE COVER: C=50 MM.
2. LdP ee TONG BMl ve: c=5D mm
PROJECTID1JAN : HANOI PILOT LIGHT METRO LINE Sedian Nhon •Hanci RailwayStation
Tuv£N SOONG sAT E>0 THI THI -E>li:M TP HA N()I Elofn N~n ·Ga Hil NOi
mLEl~NBANt, NHUE RIVER CROSSING
WQT SONG NHUe
PIER CAPS - P151-P154 - REINF -6 / 7
MO TRV • P151-P154 -COT THi:.P- 617
DR.WING NO.IBANVESO :
PIC-TEC-GRR-WVO-J04-18265-B 3A
~
~
; •••
uii
I~~
.s
••
~ H
• n
?
c
f f f f
v- I
I fl ff ff ff
--v1)1 1)1 1)1 IJVJ
-~
'
~
8 -
'
~
10 ~
--------@
• ' ~
@
~
' , -------@
' ~
• ' ~
009
0---1
(§) ' -------@
' ~
' ~
TO BE ADJUSTED IN CASE OF CONFLICT WITH DRAINAGE PIPE
'~
• ~
;s~ Elli=:U CHINH Nl:.U COXUN~ T VO'I Ell!ONG ONG THoAT NLIOC
JEl
003
~ l
-----
71
--v~
f
~ 71
~I i• 1, I • I I
u I fl]
I I
I
02
&-- ~ )-
'== :::0 I
== :::0
I •
I I
/f
048
'~
I
I I
"'= :::0 I
[I 049
~' ~
I I
I~I I
LJI I 028
oos) I
!
".1 I I I I I I
J _1'I I
I
I
J : I
I I
I I
~
SECTION 5-5
MAT CAT 5-5
SCALE: 1/10
rti...e:1110
t----+--+---------------+---+---+-----1 CLIENT:
t----+--+---------------+---+---+-----1 a-iOElAuru:
I
I
1:
I
I
I
"' 21/11Y11
""""'"' A.K
2A
"""'"' 2nd aubmllalan ar lectmlcal daalgn A.K HRB."'"'
u"I
I ,,( I
I
I
1C
"""" """"'"' A.K
,.
"""" Upo..d A.K
·-'1--~-+'=~+.'"=~------------+=---l="=~J.-.~-=,"--' HANOI ME'TROPOUTAN RAIL TRANSPORT PROJECT BOARD
1A
'""''" Flllll lssua
REVISION
"'"
DESCRIPTION
SO'AElOI ""y NOi DUNG sCrA.ElOI
A.K
-·.... ..,.,...T
.Arnaud BAN DI/AN DU'bNG sA.TE0THI HANQI
(Hl'CflE!QI
ailrtil;Mllil~~
I
070
PROJECT IMPLEMENTATION CONSULTANT
nrvAN THl,fC Hli;:N DI/ AN
SYSTRAS.A
PROJECTDIRECTORIGINAeocDIJ AN :
Alain B~chereau
FILE NAMEITtN aMIv£ :
PIC-TEC-GRR-IHVOJ04-111211&6_3ADWG
DESIGNED BYTHltrK£ :
A.K
CHECKEDBYsoAT:
G. Maurls
CHIEF CESIGNERCll) NHla,lTHl£'TK£ :
P.Amaud
SCALEITYLe :
FORMATKHO BAN ve:
A1
STATUSTfNHTR6NG:
Technical Design
DATEINGAY:
19/02110
This d'awilg must not be eilhlr IDMed, o:ipi!lcl orOlharwiae rep'Ocluoed
In - er h pmrt ar uucl for •nr prupmaWlhoullho prkrwrlllln
pennllillon ol HRB.
BAR MARK N" BARS/SPACING
001
002
003
004
005
006
007
006
009
010
011
021
022
023
024
025
026
027
028
029
030
031
032
041
042
043
044
045
046
047
048
049
051
061
062
063
064
065
066
067
068
069
070
2x9xD32@120
2x8xD20 @160
2x11xD32 @160
2x8xD20 @160
13xD16 @150
11xD20
10xD16 @150
2x10xD16 @150
10xD16 @150
2x10xD16 @150
2x3xD12 @150
2x10xD16 @240
2x1xD16 @240
2x1xD16 @240
2x1xD16 @240
2x13xD16 @120
2x13xD16 @120
2x8xD16 @120
2x8xD16 @120
2x2xD16 @240
2x21xD16 @120
2x21xD12 @240
2x23xD16@240
5x2x12xD12 @240
8x2x1OxD12 @240
2x11xD16 @240
3x2x7xD16 @240
2x4x3xD16@240
8x2x2xD12 @240
6x2x13xD14@120
2x2x21xD14@120
2x8x6x014 @120
2x34xD16 @150
2x4xD12
2x2x3xD12
2x2xD8
2x2x2xD8
4x4xD12
2x4x3xD12
2x4xD8
2x4xD8
2x18xD18
2x2xD16
NOTES:--------------~
GHICHIJ:
1. REINFORCEMENT YIELD STRENGTH: FY=420 MPA.
1. CUONG £>0 CHAY COA COT TH!:P fc=420 Mpa.
2. CONCRETE COVER: C=50 MM.
2. LdP ee TONG BMl ve: c=5D mm
PROJECTID1JAN : HANOI PILOT LIGHT METRO LINE Sedian Nhon •Hanci RailwayStation
Tuv£N SOONG sAT E>0 THI THI -E>li:M TP HA N()I Elofn N~n ·Ga Hil NOi
mLEl~NBANt, NHUE RIVER CROSSING
WQT SONG NHUe
PIER CAPS - P151-P154 - REINF - 717
MO TRV - P151-P154 -COT THi:.P- 7 I 7
DR.WING NO.IBANVESO :
PIC-TEC-GRR-WVO-J04-18266-B 3A
~
~
i
I!!
~
t ui w .!:
F %
!I $i
!;l 8
~ uii: B
15
ES1 S1 SAB' SA7' SAS'
®0
DETAILX
CHI Tl~TX
SCALE: 1/10
T'i'Ll;::1/10
RE~FOR PT CONFLICT ~-E1£U CHINH TliANH COT THEP 001 VOi XUNGE PT
- --- ---
8 @ 0 9@
8
- ~>SECTION A-A
MAT CAT A-A
"scALE: 1r.zo
T'i'LS:1/20
o----+----+----------------+----....___....____. Q.IENT:
o----+----+----------------+----....___....____. CHOflAuru:
3" 21/11Y11
2A 3004'11 HRBUpda111d A.K
2nd aubml11lon at'lechnlcal dMlgn A . K
1C ~8110
=o=
'=~=
x ~
_,_@_,
•18 2Ml&'IO
Upda111d A. K
UPDATED A. K HANOI METROPOLITAN RAIL TRANSPORT PROJECT BOARD
SA9 S3 SB9
KEY PLAN
K~ HOJ;CH CHfNH
SCALE : 1/200
T'i'Ll;::1/200
N
Ci
12 0-DB Q
[10x6x2J @300 ~
.,,CD a
Ca
·-o:;:e.
~
~
1--~D~16~s - - -
PROJECT IMPLEMENTATION CONSULTANT
11 VAN THl,IC HreN DI,/ AN
SYSTRAS.A
FILE NAA1ElTtN e,l,i/£:
DESIGNED BYTH1"1K£:
A.K
CHECKED BYSlll.T:
G. Maur1s
I
I
' S2 ES2
SA2' SA1' PS1
SA2 ~~
~1 ~J
SA1 PS1
SB2 17& SB1 PS2
SB2' ~
SB1' PS2
I I I    I  
~~ I
I 
--, ---,.-,  --,  
 ' 
11
I I I
/ 2x20 012
@150,:. !, '-- --- i.-
- ~
--- --- --- ---
=DE'IAILX)
I [; ,_ '-- I-
,__
:S ~ ~ ::r
e--- ,__ '-- I -
'--
,___
~
e-- '----
CHITIETX
- ,_ L---
@-
I/ ""'" ,_ '-- -
BLISTER TYPE 1
ROLOAI 1
REINFORCEMENT SEE DWG.
COT THEP XEM BANvE
PIC-TEC-GRR-WVO-J04-18650-B
PIC-TEC-GRR-WVO-J04-18651-B
;!
c
• o
"'"':Si.
-
SCALE TYLE:
FORMATKHO BAN VE:
A1
L--
/
L"
(~A
STAlUS TfNH~G :
Teclmical Oesign
DAlENGAY:
31/01/10
Thil <Rwi'ID mUll:notbe eithlrlOlrled,<q>ied«otl'lll'Wile NP'Odiacl
ln wtdeah P11rtorul8dfor•nr prupmewllhoul:.. prlor'Mltsl
parmlllllonot HRB.
.
SECTION 8-B
MAT CAT B-B
SCALE: 1120
T'i'Ll;:1/20
2x20-D20
@150
01
01~
006
01~
007
DB
009
NOTES: ~~~~~~~~~~~~~~~~~~~~~~
GHI CHL.f:
1. REINFORCEMENT YIELD STRENGTH: FY=420 MPA.
1. ClldNG E0 CHAY CllA cx:fTTHE'.P :fy---420 Mpa
2. CONCRETE COVER: C=50 MM.
2. LdP BE TONG M Ov£c=50 mm
3. FOR PARAPET S"fARTER BARS REFER TO DWG. NO.
3. E£ XEM THANH COT THe!P CHO'COA LAN CAN XJN XEM BAN VE SO
PIC-TEC-GRR-WVO-J00-18803-B TO PIC-TEC-GRR-WVO-J00-18808-B
PROJECT CVAN: HANOI PILOTLIGHT METRO LINE Sedion Nhon•HantiRailway S1ation
TIJY£N flOONG sATElO THITHIfllEM1l'HA NQI Batn N~n · GaHi NOi
Tm.E TtNB,l,iVE: NHUE RIVER CROSSING
VU'QT SONG NHUI;:
DECK- SA1-SA1'-SB1-SB1I - REINF - 1/2
BAN W,T cAU • SA1-SA1'-SB1-SB1' - c0T TI·H::P -1 / 2
1A 31m11101----+---+-F-lm--..--------------+-,.-.K---4---4-----1 BAN DI/AN llWNG IA.TllOTHI llANQI
REVISION DATE DESCRIPTION
NQI DUNGWAfJOI
IHIHl!BI'
HIM!
CllllCIDBI'
IOI.!
PROJECTDIRECTORGIAMaoc01,1AN: CHIEF ~IGNERCll) NHleMlll1£rKe: ......My_..,.,._.......1111 ..... ..,.. .... _m(llpMnt.y
....~ ...- .........~t~'"""'""'""""·
DRAl'l1NGNO. BANV£SO:
SLrAOOI Nal.Y Alain B~cheraau P. Amaud PIC-TEC-GRR-WVO-J04-18500-B 3A
8oc T1pe ,, ,, Total hope Bend
I
8oc Type No ofNboa'.~ Total llen fh hope Bend 8oc Type No 1,fNboar To~ol hope Bendfbor Length Lengthmark
'"" o1
""'h
,, [ode Type D1menmns Shape
"" mark
'"" of inmh No. g Code Type D1mens1ons Shape
"" mar•
'"" of in,.,h ,, Code Type Dimensions Shape
""s11e memb memo me memb rnemb Sile m•mb memb
" " " " "" " "" " "" "" " "
°'' D16 1 46 46 3740 OD Ad140
= on D8 1 120 120 63D 99 1 A=l19 B=40D
b "" DS 1
• • 1160 99 2 A=86 BdSI [=140 Ddl5
n002 D12 1 116 116 3560 00 A=l555
= 031 D18 1 40 40 3350 15 1 A=1601 B=1411 [=715
~ 8'1 D16 1 12 12 1340 51 2 A=10D B=1&0 [=143
g
003 D14 1 3D 30 3660 00 A=lO>l
= m D16 1 2D 2D 6270 15 1 A=J1J4 B=Ol C=lll4
~ m D16 1 4 4 1100 21 2 A=90 B=10J [=Ill
IbdI
°" D16 1 52 52 3740 00 Ad140
= m D16 1 20 20 3710 00 A=l109
=000 D14 1 20 20 5300 25 1 A=00lB=0Dl[=515D=575E=4079-·•1U1~ rn D12 1 40 40 3850 15 1 A=115J B=5B1 (=170l
~MEAN
·~
""'.... ~·
'°' D14 1 20 20 5120 25 1 A=&OlB=O~J[=515D=515E=l81l-•40l1~ m D12 1 40 40 2050 99 1 A=SJO B=14i C=14l4 yMEAN aMl"a1=10"
·~
""'.... ~·
'°" D10 1 40 40 1630 15 1 A=l1l 8=145 C=14&1
~ m D12 1 40 40 1350 15 1 A=69l 8=l97 (=Oll
cl=S50
~
OOB DB 1 12 12 1680 99 2 A=l99-·l49 8=l51 [=315
n m D10 1 40 40 1350 13 1 A=l115 E::::=MEAN
·~
""'.... ~·
·~011 D20 1 40 40 6655 99 2 040 DB 1 4 4 1130 99 2 A=98 B=l51 C=l15
nMEAN
·~
""'.... ~·
A=1Q B=J9J [=1ll4-•1111 D=lli E=1J3J-•1811 F=104 041 DB 1 B B 1140 99 2 A=l01 B=l51 C=l15
ne<1=1lS'e<2=11"e<l=108'e<4=11"e<S=llS'
'"""•-OT>- """""-011'- ,,.,,..._,,,_
c c
Total Lengths and WeighJ-s
Number of members 1
Type T Type R BENDING DIAMETERS Imm]
~
D1omotors 6 • m 12
" " " 22 22
" " 22 % 00 Lengths of standard hooks Imm)Total Weight Total Total Weight Total
HooksDiameter Length per unit Weight Length per unit Weight %
'" 40 22
" % m• 110 m
''° "' "' '"" m
'"'
lkglm] lkgl
'"' lkglml [kg] 0
1Type11 IDiam,ters I 6 I s I 10 I 12 I 14 I 16 I 1s I 10 I 21 I 2s I 20 I 12 I 36 I 40
~ Frames 24 32 40 4B % 64 m• 120 132
''° "' '" '"" 322
6 0 0.222 000 !Type 21
~
119 0395
Hooks
0 0 0 0 0 0 0 0 0 0 0 0 0 0 mhoroge• 118 46.BB 1Type11 !Type II %
'" "' ""
,,,
"' "' "'
;oo m
'"' rn
'"°~ 0 0
10 119 0.617 73 55 Frames 0 0 0 0 0 0 0 0 0 0 0 0 0 0
@_
Fromos 22 %
'" "' ""
,,,
'" "' "'
;oo m
"' rn
'"°~ ITypo 21 IType11
12 703 0.686 624.23 mhoroges 0 0 0 0 0 0 0 0 0 0 0 0 0 0~ ITyp,11
14 31B 1.210 385.02
•~ Fromos 0 0 0 0 0 0 0 0 0 0 0 0 0 0
16 5"7 1580 926.83 iT"0
•11
~
BAR DIMENSIONS1B 134 2000 268 00
~
mhoroge20 266 2 470 657.51 - THE DIMENSIONS ARE GIVEN ON THE OUTSIDE FIBER OF THE REBAR ISEE BELOW! • %
'" 40
" " % m•
"' m
''°
,,.
"' '" '"~
~
0
!Type II
22 0 2.960 0.00 - THE TOTAL LENGTHS ARE CALCULATED ON THE BASIS OF THE CENTERLINE Fromes %
'" 40
" " %
'" 110 m
''° ''"
,,,
'" '"~ IT""'11
25 0 3.850 0.00 [ISO 3766 2004 - METHOD Bl
mhoroges~ 0 0 0 0 0 0 0 0 0 0 0 0 0 0
20 0 4.830 0 00 - THE BENDING ANGLES ARE GIVEN IN DEGREES
• ITio•ll
~ Fromos 0 0 0 0 0 0 0 0 0 0 0 0 0 0
32 0 6 310 0 00 A E IT""•11
~
n____K'
36 0 7.990 0 00
~
mhor;ige40 0 9 860 0 00 • o; o; o; o; o; o;
" BO .. mo
"' "" "' ,40
~
~~
,tr- 0
ITyp,11
Fromos 4; o; o; o; o; o;
" BO .. mo
"' "" "' ,40
1Type11
Type T Type R '--
1~:~':n" 0 0 0 0 0 0 0 0 0 0 0 0 0 0
Total Length - Bended " Fromos1282 0 0 0 0 0 0 0 0 0 0 0 0 0 0
lhoe11
Total Length - Straight: 963 a
Total Length [ml. 2246
Total Weight - Bended 1767
~
Total Weight - Straight 1196
Total Weight lkgl 2982
,,
Mean Size Imm]· GENERAL WEIGHT kg
LI
14.7
I I
2982
I
'""""'""' '"""''"-m- '"""""•-OTP-
CLIENT:
11
PROJECT IMPLEMENTATION CONSULTANT FILE NAMEITEN BANv£: SCALEI1YL~: STAnJSI Tt.1Hra.y4G: PROJECTl~AN: HANOI PILOT LIGHT METRO LINE Secllon Nhcn -Hanoi Railway station
' CHOEAU Tl/: T1 VAN lHIJC HIEN DlJ AN PIC-TEC-aRR-WIO-JD4-181111-8_2A.D'M3 - Technical Design
TIM:N DIJONG sAT£10 TI-II THI Dl~M TP HA NOi eo.n Nh6n- Ga 1-1111 Nl)I
~ I
SYSTRAS.A
DESIGtEDBYlHltrK£ : FaUIATIKHO BAN v£ : DATEINGAY: TlTlEIT~ BAN v£ :
HRB NHUE RIVER CROSSING
·~ A.K A1 31/01/10 VllQT SONG NHUe,
~§ "' 30I04/11 2nd a..ibrrUslcm oftschnlcal daalgn A.K ....... ·"""'"'
~2 •c 25I08/10 u-~ A.K ....... ·"""'"' CHECKEDBYsoAT: Thll-gmuatnatbaalllwl...,ad,cq>lllcl<r--NlplldLDld DECK-SA1-SA1'-SB1-SB1' - REINF - BAR LIST-2 / 2HANOI llETROPOIJTAN RAIL lRANSPORT PROJECT BOARD
~~ "
,.,.,,, UPDATED A.K G.MauriB P.Arraud G. Mauris in whale or in part ar U8lld for anr prupoeewih::utllll priorwrillan
BAN M"'-T cA.U - SA1-SA1'-SB1-SB1' -COT TH~P- DANH Ml,IC THANH
1A 31/01/10 Fntlmua A.K .MauriB
·"""'"' BAN O~ AN DllONG BATDO THI HA NQI permission of HRB.
•• REVISION
"'"
DESCRIPTION ...... ..... "'""""
PRO..ECT DIRECTOO.IGIAMEJ0c DU'.AN : CHIEF DESIGNERCHO NH~ TiiltrKi!: : e•nv1 n1y111101111 ~pimp lird~ng duUlrn;il tlrtllt(ft:,rnOllll*' toiy DRAWING NO.IBANv£SO :
I2AB SCPADOI ....y NQI DUNG f!CADOI
""" "" CllJltGIHrKI: Alain B6chereau P.Ameud
ltlin b(I, ml. khOng ~II/ @ng j bing ¥In biln ala HRB.
PIC-TEC-GRR-WVO-J04-18501-B
2/
~
~
it
i
~ii:
15
ES1 S1 SAS' SA7' SA6'
_..........__
REBAR ADJUSTMENT
Ell~U CHlNH TliANH COT THi;P
=--- ~FORPT CONFLICT
001 reorpr
I!!
~
uw .!:
F %
!I $i
!;l 8
uB
@) (§) 10N
"'0 ~
"''-;;
N
!!~
cg
STARTER BARS :;l:
THANH COTTHi;P NHO RA ~
___s 2x23-016
S O
"'"'- c-
'7 @,_,_
N 'i
N
x
N
DETAILX
CHI Tli;:T X
SCALE: 1/10
TYLI;: 1110
0
0111
~-..."'...
036 @) 0 n @
9~~ ~~N ....,,
9A Ci i:jii, ooo 9A
Cl 0 Clo Cl
.... ....
·- N
.. ..........
tJ ~ L.___J
@ 8
L.___J
€Y 0~;l = =9A " "'C?@, ;:!~
0 ";'@.N
=" =... N
N
~· (8)
@
- SECTION A-A
M~TCATA-A
SCALE: 1/20
TY Li;:1120
o----+----+----------------+----+---+----< Q.IENT:
CHOflAu 11:
o----+----+----------------+----+---+----<
3" 21/11Y11 Upda111d
2A 3004'11 2nd aubml11lon at'lechnlcal dMlgn
A. K
A . K HRB
n
®
~g
·-<;:A
....
o=
' 0
,.,-, o
j.~
0
n
1C ~8110 Upda111d
18 2Ml&'IO UPDATED
A . K
1--=--i;;;=""--+-"==--------------+-,."".K"----= =-.;..;..;;;=---1 HANOI METROPOLITAN RAIL TRANSPORT PROJECT BOARD
1A 31m1110
REVISION DATE
SLrAOOI Nal.Y
Fl'"1 11a»
DESCRIPTION
NQI DUNGWAfJOI
" ·K BAN 011AN allONG sA.TaO THI HA NQI
IHIHl!BI
HIM!
CllllClllBI
IOI.!
•
SA9 S3 SB9
KEY PLAN
Ki;: HOACH CHfNH
SCALE : 1/200
TYLl;:1/200
8
~
D
n
@
!i,_
c;::a
....
SA3.---
SB3' 9
~~
9Ci
;!
I I I I I ,
- ·II I I I I
r'
DETAILX )
CHI ni;r x
BLISTER TYPE 7 /
REr~bRCEMENT SEE DWG.
~?d-Wfe.a~~'if-.104.10650-B
PIC-TEC-GRR-WV0-.104-18651-B
ENT:I2x20- D20 f[ili REB AR AOJUSTM
@l150 ..'.'...'.Y  FDR PT CONFLICT
PROJECT IMPLEMENTATIONCONSULTANT
11 VAN THl,IC HleNDI,/ AN
SYSTRAS.A
HCOTEllfOUCHINHTHAN
THi;P001 VOi XUNGEl0TPT
FILE NAA1ElTtNBAN/£:
DESIGNED BYTH1£TK£ :
A. K
[](§)
~1
L
....
CiI
:e..N
SCALE TYLE:
FORMATKHO BAN VE:
A1
SA2'
SB2'
032 033@ @)
gf gj
85' SB6' SB7' SB6' S ' S2 ES2
SA1'
SB1'
       _ _ -' ,___,___,    -' A•
'J
v
~

2x20- D12
@-~ - - - - - - - - @.1150
' i.- -
- - I=
t r ~ ..,....
-I - - - ._.- -
I -
- - -'Y' ,-'J I - - - - c-- ~
I - >-
- - I -
-.__ - - 2x20- 020 @§
~
@1150
BLISTER TYPE 6
/ R0 LOAl 6
- -
~/
I/ REI N ~ORCEMENT SEE DWG.
I- - COTTHi;PXEM BAN vi::I -
PIC-TEC-GRR-WVO-J04-18652-B
---I - - J ~i-- >- I - -- - >- PIC-TEC-GRR-WVO-J04-18653-B
- - - >-
i-- -- '-::
- .... ..,
1;;;;. ,._. ~~
014 S L.___)
014
8 L.___J
 I
I OB
8 n
SECTION B-B
M~T CAT B-B
STAlUS TfNH~G :
Teclmical Oesign
DATENGAY:
31/01/10
SCALE: 1/20
TYLl;:1/20
NOTES: ~~~~~~~~~~~~~~~~~~~~~~
GHICHL.f:
1. REINFORCEMENT Y1ELD STRENGTH: FY=420 MPA.
1. ClldNG El0 CHAY CllA cx:fTTHE'.P :fy""-420 Mpa
2. CONCRETE COVER: C=50 MM.
2. LdPeeTONGe.<oVEc=50 mm
3. FOR PARAPET S"fARTER BARS REFER TO DWG. NO.
3.ElE. XEM THANH COT THe!PCHO'COALANCAN XJNXEM BAN VESO
PIC-TEC-GRR-WVO-J00-18803-B TO PIC-TEC-GRR-WVO-J00-18808-B
PROJECT CVAN: HANOIPILOTLIGHT METRO LINE Sedian Nhon•HantiRailwayS1alial
TIJY£NellONGs>.r ElOlli[THIe1eMTPHANQI ElatnN~n. Ga Hi NOi
Tm.E TtNBANVE: NHUE RIVER CROSSING
VU'QT SONG NHUI;:
CHECKED BYSlll.T:
G. Maur1s
Thil <Rwi'IDmUll:notbe eithlrlOlrled,<q>ied«otl'lll'Wile NP'Odiacl
ln wtdea h P11rt orul8dfor•nr prupmewllhoul:.. prlor'Mltsl
parmlllllonot HRB.
DECK- SA2'-SB2' - REINF -1/2
BAN W,T cAU . SA2'-SB2' - cOT 11-1i:.P. 1 / 2
PROJECTDIRECTORGIAMaocDI/AN: CHIEF~IGNERCll) NHleMTH1£rK£: ......My_..,.,._.......ng ..... '"""""-"""iHn'-Y
....~ ...- .........~t~ '"""'" "'" """·
DRAl'l1NGNO. BANV£SO:
Alain B~cheraau P. Amaud PIC-TEC-GRR-WVO-J04-18504-B 3A
Boe Type l:'o htal hape Bend Boe Type No ~"fNbo''.~Totol llen th~hapel Bend
I
Boe Type I 'o Total Shope Bend
I
No fbor
Lengfh
No ofbar
Lengthmark
'"" of mmN No [ode T1pe D1mens1ons Shape
"" mark
'"" of ""'h No. 9 [ode Type D1mens1ons Shope
"" mark
'"" of '"'"h No Code Type Dimensions Shape
""size mernO ~•mb Ille memb memb me memb m•mb
"" " "" " "" "" " " " " " "
o°' D16 1 46 46 3740 00 A=l74a
= m DB 1 120 120 630 99 1 A=119 B=4DO
6 o" DB 1 B B 1160 99 2 A=80 B=l51 [=14D D=l15
n002 D12 1 114 114 3560 00 A=l555
= °" 01B 1 40 40 3350 15 1 A=Z011 8=1411 C=115
~ "" D16 1 12 12 1340 51 2 A=1008=16DC=14l
g
oo; D14 1 32 32 3660 OD A=JOSO
= 032 016 1 20 20 6270 15 1 A=JIJ4 B=Ol l=J1J4
~ °" D16 1 4 4 1100 21 2 A=490B=Z0ll=43J y
ooc D16 1 46 46 3750 00 A=l749
= OB 016 1 20 20 3710 00 A=JJag
=000 D14 1 20 20 5410 25 1 A=00l8=603(=515D=515E=4101-·4l0l~ o,; 012 1 40 40 3850 15 1 A=115l B=5iJ [=1703
~
1=....- ·~
002 D14 1 20 20 5265 25 1 A=ODJB=00J[=515D=515E=40ll-•4111~ o;; 012 1 40 40 2050 99 1 A=5JO B=14j l=14J4
ridMEAN aM1"a1=io•
1~ ...-·~
008 010 1 40 40 1630 15 1 A=113 B=l45 [=1467
~ o;e 012 1 40 40 1350 15 0 A=693 B=l91 [=013
cMS~
~
""" D8 1 12 12 1580 99 2 A=199-·l49 B=l51 (=l15
in. "" 010 1 40 40 1350 13 1 A=1115 t::;=i
1=.,.
-·~
~010 D12 1 2 2 1220 99 2 A=193 B=l50 040 08 1 4 4 1130 99 2 A=98 B=lSI [=JlS
in.'
·~ in.011 D20 1 40 40 6345 99 2 • c 041 08 1 8 8 1140 99 2 A=llJ B=l51 [=J15
MEAN
1~ ...-·~ '
A=1~4 B=l9l [=1510-,1Jl4 D=l89 E=1514-·17l7 f=1~4
e<l=1l5"a1=71"al=11B"e<4=71""5=1ll"
'"""" -011'- '"""""•-OTP- """'"'•-OTP-
c c
ToJ-al Lengths and Weights
Number of members 1
Type T Type R BENDING DIAMETERS (mm)
- Lengt-hs of standard hooks Imm)
Total Weight Tatal Total Weight Total Diameters 6 8 10 12 14 16 18 20 22 25 28
Diameter Length per unit Weight Length per unit Weight Hooks IDiameters 6 8 10 12 14 16 18 20 22 25
'"1 Ikg/ml lkg) ,,, [kg/ml lkgl [Type 11 36 48 60 72 84 96 108 120 132 150 224
-
0 000
0
6 0.222 Frames 24 32 40 48 56 64 108 120 132 150 224- (Type 2]
8 m 0 395 46.40 nchorage
72 96 120 144 168 192 216 240 264 JOO- Hooks
0 0 0 0 0 0 0 0 0 0 0
[Type 1)
10 119 0.617 73 55 [Type 1) 0
- R
@_
Frames 0 0 0 0 0 0 0 0 0 0
12 698 0.868 620.07 Frames
0 0 0 0 0 0 0 0 0 0 0
(Type 2]
- [Type 21
14 ll1 1.210 400 05 nchor~ge
12 96 120 144 168 192 216 240 264 300- [Type 1)
16 565 15BO 892.10 8
Frames-
BAR DIMENSIONS 0 0 0 0 0 0 0 0 0 0
18 134 2 000 268 00 ITvpe 2]
-
20 254 2 470 626.89 - THE DIMENSIONS ARE GIVEN ON THE OUTSIDE FIBER OF THE REBAR ISEE BELOW!-
22 0 2.980 0.00 - THE TOT AL LENGTHS ARE CALCULATED ON THE BASIS OF THE CENTERLINE n(horage-
1150 3766 2004 - METHOD Bl 36 48 60 12 84 96 108 120 132 15025 0 3.850 0.00 [Type 1)
-
- THE BENDING ANGLES ARE GIVEN IN DEGREES
~
0
28 0 4.830 000 Frames
0 0 0 0 0 0 0 0 0 0-
0 6310 000
IType 21
32
ll__J
E- n(hor<ige
36 48 60 72 84 96 108 120 132 15036 0 7.990 000 ,, [Type 1)
- R
40 0 9 860 000 Frames
0 0 0 0 0 0 0 0 0 0- IType 21
~jType T Type R
n(horage
65 65 65 65 65 65 12 80 88 100Total Length - Bended 1276
,Ji-
[Type 1)
Total Length - Straight:
0
Frames942 0 0 0 0 0 0 0 0 0 0 0
Total Length lml. 2218
IType 21
......__ nchor~ge
Total Weight - Bended 1763
0
[Type 1) 65 65 65 65 65 65 12 80 88 100
R
FramesTotal Weight - Straight 1164 0 0 0 0 0 0 0 0 0 0
Total Weight lkgl
,_, ITvne 2]
2927
Mean Size [mml GENERAL WEIGHT kg
)/I
14 6
I I
2927
I
'"'"'""' ""'"'"-OTP- ""'"[)o-011'-
~
' CLIENT:
II
PROJECT IMPLEMENTATION CONSULTANT FILENMIEITtN BAN v£ : sr.ALEIrtL(: : STATUSTlNHT~: PRO.ECTIDl/ #.! : HANOI PILOT LIGHT METRO LINE Sectkln NOOn - HlllOI Ralway station
~ I CHOEl.Wnr: Tl/ VAA THVC Hll;N DIJ AN PIC-TEC-ORR-WVQ.JIM-1BllllMl_JIA.DWa - Technical Design
TU1N WONG sATBO rn1 rnlDlt::M TP HA NOi E>olil1 Nh&i- Ge Hill NOi
~ ~ ~ SYSTRAS.A
DESIGNED BYITlll£'r KE: : FORtMTIKHO eANv£ : DATEINGAY: Tm.EITtN BAN v£ :
~ HRB NHUE RIVER CROSSING
'~ A.K A1 31/01110 lll1QT SONG NHUo7
~§ "' "'"'11 2nd submission of lechnlcaldes91 H 3.Maurls
·"'°"'""
!!s 1C ....10 UM•1"d H IG. Maurta
·"'°"'"" CIECKED BYsoAT: Thladr-ingrnJlllnolba-IDar-.d,coplaclor-rapmcilcad DECK - SA2'-SB2' - REINF - BAR LIST - 2 / 2HANOI METROPOUTAN RAIL TRANSPORT PROJECT BOARD
q 1B ,...,, UPDATE>
~·
jG. Mauria
"·"'°"'"" G. Mauris i1 whole ar in part or used for any prl4)Ca wihoU; lh8 priarwrillBn
BAN ~T cAU - SA2'.SB2' -COT TH~P- DANH MVC n<ANH - 2 Ii
~ 1A 31/01/10 Fi181 l8al8
~·
3.Mauria
·"'°"'"" BAN OiiAN DUONG sAT00 Tiii HA N()I permissiondHRB.
! •
""'"" ...... PROJECTDIRECTORIGIAMe0c IX/AN : CHIEFDESIGNERIa-io tt11eM Tiii~ KE: : Bin ve nQ'khOng auqc ph6p ar. dlol'IQ dllCI mQI hlrll tll)c, ml)I phln hay DRA'MNGNO.IBAN v£: SO :
I2A~ B
REVISION OA" DESCRIPTION ClilEFOFDl!O IDAn bl), mil khOng o!uqc •II' oD!g ~ ~IAln bin all. HRB.
PIC-TEC-GRR-WVO-J04-18505-BS(IAOO
"" NQI DUNG SO'A 001 THl~ICE
"" Cl(JNIGlllETE Alain Bllchereau P.Amaud
~
~
it
i
~ii:
15
ES1 S1 SA8' SA7' SAS'
~NT
EIEU CHINH ™ANH COT THEP
FOR PT CONFLICT
=--- EOI VOi XUNGEQT PT ~
I!!
~
uw .!:
F %
!I $i
!;l 8
uB
8 @) 10N
"'o SJ~
'-;;
N
.,.,,
STARTER BARS ~i,
THANH COT TH!l:P NHO RA<;::
---s 2x23 -D16
®O
DETAILX
CHITl~TX
SCALE: 1110
T'i'LS: 1/10
.,,0111
~-0
..."'N
n @
9s 9 0
[]
@
~~
ooo l:jl@.
Clo 0
·- N
......
~ L__J
8 @
L__J
~;l
l:jl@.
0
N
"...
0
= =
""'Sl@. ;::!~
";'@..
SECTION A-A
MAT CAT A-A
SCALE: 1/20
ti' Li;:1120
-
o----+----+----------------+----....___....____. Q.IENT:
o----+----+----------------+----....___....____. CHOflAuru:
3" 21/11Y11
2A 3004'11 HRBUpda111d A. K
2nd aubml11lon at'lechnlcal dMlgn A . K
1C ~8110
n
®
~g
·-c;::s
....
18 2Ml&'IO
Upda111d A. K
UPDATED A. K HANOI METROPOLITAN RAIL TRANSPORT PROJECT BOARD
1----+---+-F-lm- -..--------------+-,.-.K---4---4------1 BAN DI/ANEWNG sA.rEOTHI llANQI1A 31m1110
REVISION DATE
SLrAOOI Nal.Y
DESCRIPTION
NQI DUNGsLrAfJOo
IHIHl!BI'
HIM!
CllllClllBI'
IOI.!
SA9 S3 SB9
KEY PLAN
K~ HO~CH CHiNH
SCALE : 1/200
T'i'LS:1/200
8
n
@
SA3
SB3 9
~
!iD
,_
c;::s
....
.,.o
Ci~
...;!
I I I I I  I  I I I I
- 11
I I I I I
(~ [CJ
~ - ~
DETAILX)
.t ~~
rr-
CHITIETX v
BLISTER lYPE 7
1---
/ ~ L--
ROLOA17 ~
L--
-REINFORCEMENT SEE DWG.
COT THEP XEM BAN v£
PIC-TEC-GRR-WVO.J04-18650-B
PIC-TEC-GRR-WVO.J04-18651-B
SA2
SB2
032 033@ @)
5[ gj
I
,----,-----,-l,-

r:.;; ~
'-
- L--
L--
,_ '-L--
I I
-
L-- '-
L-
,_
----,- _ _ _ 

-- f-
1--- - f-- - r-
- -1---
' S2 ES2
SA1
SB1
2x20 - D12
[6.1150 §
2x20- 020 @§@1150
-
BLISTER lYPE 6
/ R0 LOAl 6
ENT~ -
[](§) '-
,_2x20-D20 foli REBAR AOJUSTM
@l150 ..'.'...'.Y  FOR PT CDNFLIC
- L-
~I/
I/ REINFORCEME
COT THEP XEM BAN
PIC-TEC-GRR-
NT SEE DWG.
vE
WVO.J04-18852-B
•PROJECT IMPLEMENTATION CONSULTANT
11 VAN THl,IC HleN DI,/ AN
SYSTRAS.A
PROJECTDIRECTOR GIAMaoc01,1AN:
Alain B~cheraau
THCOT il:P
TPT
E>IEU CHINH THAN
001 WI XUNG ElO
FILE NAA1ElTtNBAN/£:
DESIGNED BY TH1£TK£ :
A. K
CHECKED BYSlll.T:
G. Maur1s
CHIEF~IGNERCll) NHleMTH1£rK£:
P. Amaud
- L--
L-- '- -
~L-- '-- 1--- -- c--
J
~1
--:::-
L--
- c-- '-
PIC-TEC-GRR-k
'-::
L-
- ,__
- -'--
....., I
1.- ~
-" L-<'. ~
c 014
s
WVO.J04-18653-B
014
8....
c  I 
:e y DB
n.....
-SECTION BB
MAT CAT B-B
8
SCALETYLE:
FORMATKHO BAN VE:
A1
STAlUS TfNH~G :
Teclmical Oesign
DATENGAY:
31/01110
Thil <Rwi'IDmUll:notbe eithlrlOlrled,<q>ied«otl'lll'Wile NP'Odiacl
ln wtdea h P11rt orul8dfor•nr prupmewllhoul:.. prlor'Mltsl
parmlllllonot HRB.
......My_..,.,._.......ng ..... ..,.. .... _m(llpMnt.y
.... ~ ... - .........~t~ ,,.,, ...... HRB.
SCALE : 1120
ti' u;:1120
NOTES: ~~~~~~~~~~~~~~~~~~~~~~
GHI CHL.f:
1. REINFORCEMENT YIELD STRENGTH: FY=420 MPA.
1. ClldNG El0 CHAY CllA cx:fTTHE'.P :fy--420 Mpa
2. CONCRETE COVER: C=50 MM.
2. Ld l' BE TONG M OvEc=50 mm
3. FOR PARAPET S"fARTER BARS REFER TO DWG. NO.
3. EE. XEM THANHCOT TH!l:P CHO' COA LAN CAN XJNXEM BAN v£SO
PIC-TEC-GRR-WVO-J00-18803-B TO PIC-TEC-GRR-WVO.J00-18808-B
PROJECT CVAN: HANOI PILOTLIGHT METRO LINE Sedion Nhon•HantiRailwayS1atial
TLJYEN flOONG sATEJ0TH[THIfll~M TPHANQI Elatn N~n · Ga Hi NOi
Tm.ETtNBANVE: NHUE RIVER CROSSING
VU'QT SONG NHUI;:
DECK- SA2-SB2 - REINF -1/2
BAN ~T cAU - SA2-SB2 ·COT THi:P - 1 / 2
DRAl'l1NGNO. BANV£SO:
PIC-TEC-GRR-WVO-J04-18508-B 3A
Boe Type l:'o htal hape Bend Boe Type No ~"fNbo''.~Totol llen th~hapel Bend
I
Boe Type I 'o Total Shope Bend
I
No fbor
Lengfh
No ofbar
Lengthmark
'"" of mmN No [ode T1pe D1mens1ons Shape
"" mark
'"" of ""'h No. 9 [ode Type D1mens1ons Shope
"" mark
'"" of '"'"h No Code Type Dimensions Shape
""size mernO ~•mb Ille memb memb me memb m•mb
"" " "" " "" "" " " " " " "
o°' D16 1 46 46 3740 00 A=l74a
= m DB 1 120 120 630 99 1 A=119 B=4DO
6 o" DB 1 B B 1160 99 2 A=80 B=l51 [=14D D=l15
n002 D12 1 114 114 3560 00 A=l555
= °" 01B 1 40 40 3350 15 1 A=Z011 8=1411 C=115
~ "" D16 1 12 12 1340 51 2 A=1008=16DC=14l
g
oo; D14 1 32 32 3660 OD A=JOSO
= 032 016 1 20 20 6270 15 1 A=JIJ4 B=Ol l=J1J4
~ °" D16 1 4 4 1100 21 2 A=490B=Z0ll=43J y
ooc D16 1 46 46 3750 00 A=l749
= OB 016 1 20 20 3710 00 A=JJag
=000 D14 1 20 20 5410 25 1 A=00l8=603(=515D=515E=4101-·4l0l~ o,; 012 1 40 40 3850 15 1 A=115l B=5iJ [=1703
~
1=....- ·~
002 D14 1 20 20 5265 25 1 A=ODJB=00J[=515D=515E=40ll-•4111~ o;; 012 1 40 40 2050 99 1 A=5JO B=14j l=14J4
ridMEAN aM1"a1=io•
1~ ...-·~
008 010 1 40 40 1630 15 1 A=113 B=l45 [=1467
~ o;e 012 1 40 40 1350 15 0 A=69l B=l91 [=013
cMS~
~
""" D8 1 12 12 1580 99 2 A=199-·l49 B=l51 (=l15
in. "" 010 1 40 40 1350 13 1 A=1115 t::;=i
1=.,.
-·~
·~011 D20 1 40 40 6345 99 2 040 08 1 4 4 1130 99 2 Ao98 BolSI [oJlS
in.MEAN
1~ ...- ·~
A=1~4 B=l9J [=1510-•1Jl4 D=ll9 E=1rn--•17l7 F=104 041 08 1 8 8 1140 99 2 A=llJ B=l51 [=J15
in.«1=1ll'a1=12'«l=1aB•ot4=12'"5=1ll•
'"""" -011'- '"""""•-OTP- """'"'•-OTP-
c c
ToJ-al Lengths and Weights
Number of members 1
Type T Type R BENDING DIAMETERS (mm)
- Lengt-hs of standard hooks Imm)
Total Weight Tatal Total Weight Total Diameters 6 8 10 12 14 16 18 20 22 25 28
Diameter Length per unit Weight Length per unit Weight Hooks IDiameters 6 8 10 12 14 16 18 20 22 25
'"1 Ikg/ml lkg) ,,, [kg/ml lkgl [Type 11 36 48 60 12 84 96 108 120 132 150 224
-
0 000
0
6 0.222 Frames 24 32 40 48 56 64 108 120 132 150 224- (Type 2]
8 m 0 395 46.40 nchorage
72 96 120 144 168 192 216 240 264 JOO- Hooks
0 0 0 0 0 0 0 0 0 0 0
[Type 1)
10 119 0.617 73 55 [Type 1) 0
- R
@_
Frames 0 0 0 0 0 0 0 0 0 0
12 696 0.868 617.91 Frames
0 0 0 0 0 0 0 0 0 0 0
(Type 2]
- [Type 21
14 ll1 1.210 400 05 nchorage
12 96 120 144 168 192 216 240 264 300- [Type 1)
16 565 1SBO 892.10 R
Frames-
BAR DIMENSIONS 0 0 0 0 0 0 0 0 0 0
18 134 2 000 268 00 ITvpe 2]
-
20 254 2 470 626.89 - THE DIMENSIONS ARE GIVEN DN THE OUTSIDE FIBER OF THE REBAR ISEE BELOW!-
22 0 2.980 0.00 - THE TOT AL LENGTHS ARE CALCULATED ON THE BASIS OF THE CENTERLINE n(horage-
1150 3766 2004 - METHOD Bl 36 48 60 12 84 96 108 120 132 15025 0 3.850 0.00 (Type 1)
-
- THE BENDING ANGLES ARE GIVEN IN DEGREES
~
0
28 0 4.830 000 Frames
0 0 0 0 0 0 0 0 0 0-
0 6310 000
IType 21
32
ll__J
E- n(hor<ige
36 48 60 12 84 96 108 120 132 15036 0 7.990 000 ,, (Type 1)
- R
40 0 9 860 000 Frames
0 0 0 0 0 0 0 0 0 0- IType 21
~jType T Type R
n(horage
65 65 65 65 65 65 12 80 88 100Total Length - Bended 1274
,Ji-
(Type 1)
Total Length - Straight:
0
Frames942 0 0 0 0 0 0 0 0 0 0 0
Total Length lml. 2216
IType 21
......__ nchor~ge
Total Weight - Bended 1761
0
(Type 1) 65 65 65 65 65 65 12 80 88 100
R
FramesTotal Weight - Straight 1164 0 0 0 0 0 0 0 0 0 0
Total Weight lkg)
,_, ITvne 2]
2925
Mean Size Imm) GENERAL WEIGHT kg
)/I
14 6
I I
2925
I
'"'"'""' ""'"'"-OTP- ""'"[)o-011'-
~
' CLIENT:
II
PROJECT IMPLEMENTATION CONSULTANT FILENMIEITtN BAN v£ : sr.ALEIrtL(: : STATUSTlNHT~: PRO.ECTIDl/ #.! : HANOI PILOT LIGHT METRO LINE Sectkln NOOn - HlllOI Ralway station
~ I CHOEl.Wnr: Tl/ VAA THVC Hll;N DIJ AN PIC-TEC-ORR-WVQ.JIM-1BllJl.8_2".DWa - Technical Design
TU1N WONG sATBO rn1 rnlDlt::M TP HA NOi E>olil1 Nh&i- Ge Hill NOi
~ ~ ~ SYSTRAS.A
DESIGNED BYITlll£'rKE: : FORtMTIKHO eANv£ : DATEINGAY: Tm.EITtN BAN v£ :
~ HRB NHUE RIVER CROSSING
'~ A.K A1 31/01110 lll1QT SONG NHUo7
~§ "' "'"'11 2nd submission of lechnlcaldes91 H 3.Maurls
·"'°"'""
!!s 1C ....10 UM•1"d H IG. Maurta
·"'°"'"" CIECKED BYsoAT: Thladr-ingrnJlllnolba-IDar-.d,coplacl<r-rapmcilcad DECK - SA2-SB2 - REINF - BAR LIST - 2 I 2HANOI METROPOUTAN RAIL TRANSPORT PROJECT BOARD
q 1B ,...,, UPDATE>
~·
jG. Mauria
"·"'°"'"" G. Mauris i1 whole ar in part <r used fOr any prl4)Ca wihoU; lh8 priarwrillBn
BAN ~T cAU - SA2-SB2 -COT TH~P- DANH Ml,IC TI-tANH - 2 /
~ 1A 31/01/10 Fi181 l8al8
~·
3.Mauria
·"'°"'"" BAN OiiAN DUONG sAT00 Tiii HA N()I permissiondHRB.
! •
""'"" ...... PROJECTDIRECTORIGIAMe0c IX/AN : CHIEFDESIGNERIa-io tt11eM Tiii~ KE: : Bin ve nQ'khOng auqc ph6p ar. dlol'IQ dllCI mQI hlrll tll)c, ml)I phln hay DRA'MNGNO.IBAN v£: SO :
I2A~ B
REVISION OA" DESCRIPTION ClilEFOFDl!O IDAn bl), mil khOng o!uqc •II' oD!g ~ ~IAln bin all. HRB.
PIC-TEC-GRR-WVO-J04-18509-BS(IAOO
"" NQI DUNG SO'A 001 THl~ICE
"" Cl(JNIGlllETE Alain Bllchereau P.Amaud
~
9!
~
iii
t
i
~ii:
15
ES1 S1 SAS' SA7' SA6'
------REBAR ADJUSTMENT
EllE.U CHINH THANH c0TTHeP
FOR PT CONFLICT
=--- ElOl~ElOTPT ~ n
©
I!!
~
uw .!:
F %
!I $i
!;l 8
uB
®' 8
PARAPET Ct
ID&n
CiLAN CAN --9&STARTER BARS a
THANH COT TH!l:P NHO RA c;::
Q 2x20-D12
~e aa1so
®
"'0
--8~
---s
®0
"'~-<--
'7@.,
...t-
N",i
"";}
~
f
I
I ~
l I
t~ t r ] I
~
l l
@ 2x2-016
c::
_ L _ _ _ .I..__ _ _ ~
2x25-D16
@1150
f
'
- ....__
10
f
-
~
DETAILX
CHI Tli;:T X
SCALE: 1110
Ti' LS: 1110
8
......,,
~·..........
~
9
0
C>"'O@
d,
I
f f I
I
I
Li
0 n @)9.. ~~
.....,,
~-
~g
~-0
·-N .... 0
N
'-------J L___J
8
=-.ten
9~
=N
@
=-.ten
9§=N
~I
@
-SECTION A-A
MAT CAT A-A
SCALE: 1!20
Ti'LS:1/20
o----+----+----------------+----...___...____. Q.IENT:
o----+----+----------------+----...___...____. CHOflAuru:
3B 12J051'12 Up Dalod A. K
3" 21/11Y11
2A 3004'11 HRBUpda111d A.K
2nd aubml11lon at'lechnlcal dMlgn A . K
1C ~8110
@
....cg,_
c;::•...
18 2Ml&f'IO
Upda1ad A.K
UPDATED A. K HANOI METROPOLITAN RAIL TRANSPORT PROJECT BOARD
1----+---+-F-lm--..--------------+,,-.K--~--~----1 BAN DI/AN llWNG IA.TllOTHI llANQI1A 31m1110
REVISION DATE
SLrAOOI Nal.Y
DESCRIPTION
NQI DUNGWAfJOI
IHIHl!BI'
HIM!
CllllClllBI'
IOI.!
•
SA9 S3 SB9
KEY PLAN
K~ HO~CH cHrNH
SCALE : 11200
TY LS:1/200
~~2x=2~0-=0~18'°-- rQ1i.
@1150 '.'...','.) 
PROJECT IMPLEMENTATION CONSULTANT
11 VAN THl,IC HleN DI,/ AN
SYSTRAS.A
PROJECTDIRECTORGIAMaocDI/AN:
Alain B~cheraau
REBAR ADJUSTMENT
EllE.U CHINH THANH COTTHeP
FOR PT CONFLICT ~
001 VOi XUNG ElOT PT 
FILE NAA1ElTtNBAN/£:
PIC-TEC-GRlt-Wv'OJD4-1151M_lB.DWG
DESIGNED BYTH1£TK£:
A. K
CHECKED BYSlll.T:
G. Maur1s
CHIEF ~IGNERCll) NHleMlll1£rK£:
P. Amaud
SA4' ___
SB4' 0
~~
9i,
!! ,
1'
J_
DETAILX )
CHI Tlil:TX
~
@
gl
...5
I Ct
....,,
;tii,
0 1
-E7
SCALE TYLE:
FORMATKHO BAN VE:
A1
SA3'
SB3'
@) @)032 033
;;f ;;f
SAX
SB2'
              :;;:::::;   ,
!,.'-
~
L-

cc;
2x20 012
@-@l150
M0-018 @§@l150
BLISTER TYPE 5
'--
.__
~
i/lilJ.m>~CEMENTSEE DWG.
- .__ - COTTHeP XEMBAN ve,_ ~ ~
'- PIC-TEC-GRR-WV0-.104-18654-BL...- - ,_ - c-
~
I/,_ ,_ ,_ ,_ ,_ -,_
- L- '- ,.+
~ PIC-TEC-GRR-WV0-.104-18655-B..... ri 11L- '--
~ Jo I--'
014
<§'-------J
I 014
@'-------J
 
 OB
SECTION B-B 8 n
MAT CAT B-B
STAlUS TfNH~G :
Teclmical Oesign
DAlENGAY:
31/01110
SCALE: 1!20
TY LS:1/20
NOTES: ~~~~~~~~~~~~~~~~~~~~~~
GHICHL.f:
1. REINFORCEMENT YIELD STRENGTH: FY=420 MPA.
1. ClldNG El0 CHAY CllA cx:fTTHE'.P :fy--420 Mpa
2. CONCRETE COVER: C=50 MM.
2. Ld PBil: TONG e.<ov£c=50 mm
3. FOR PARAPET S"fARTER BARS REFER TO DWG. NO.
3.ElE. XEM THANH COT TH!l:P CHO'COA LAN CAN XJN XEM BAN VESO
PIC-TEC-GRR-WVO-J00-18803-B TO PIC-TEC-GRR-WVO-J00-18808-B
PROJECT CVAN: HANOI PILOTLIGHT METRO LINE Sedion Nhon•HantiRailway S1alial
TIJY£NflOONG sATElOllilTHIfll~M 1l'HA NQI ElatnN~n · Ga Hi NOi
Tm.ETtNBANVE: NHUE RIVER CROSSING
VU'QT SONG NHUI;:
Thil <Rwi'ID mUll:notbe eithlrlOlrled,<q>ied«otl'lll'Wile NP'Odiacl
ln wtdeah P11rtorul8dfor•nr prupmewllhoul:.. prlor'Mltsl
parmlllllonot HRB.
DECK- SA3'-SB3' - REINF -1/2
BAN W,T cAU. SA3'-SB3' - cOT Tl-li:.P. 1/ 2
DRAl'l1NGNO. BANV£SO:
PIC-TEC-GRR-WVO-J04-18512-B 38
......My_..,.,._......."11 ..... ..,.. .... _m(llpMnt.y
....~ ...- .........~t~,,.,,..., ...HRB.
Boe Type No fNb~·, Total Shape Bend Boe Type No." 1~fNbo;'.~Total IL ~h~hapeIBend Boe Type No. lifN~;, Total Shape Bend
mark ;od of
"'"h No Length Code Type Dimensio~s Shape R"' mark ;od of inmh No eng Code Type Dimensions Shope R"' mar< ;od of ioeach No Length Code Type Dimensions Shape R"'
"" momb mmb size m.mb momb size memb m•mb
" " '' " " " '' " " " " "
001 B1B I
" " 3740 BB A=rn-o
= on CB I 120 120 980
" 1 A=119 B=J00-•401
b 001 CB I B B 1160
" 1 A=B6 B=l51 [=140 D=l15
nMEAN
001 012 I 110 110 3560 BB AdSIS
= °" "'" I 4B 40 3280 fB 1 A=l490B=llllt=!D1
~ "' Dl6 I 12 12 1340 51 1 A=160 8=160 [=14l
g
oo; 014 I lB lB 3650 DD Ad65l
= m Dl6 I 10 10 6270 15 1 A=ll34B=il[=l1l4
~ "" Dl6 I 4 4 1100 11 1 A=490 B=10l [=48l y
004 Dl6 I BO BO 3750 DO A=ll49
= m Dl6 I 10 10 3710 DD A=l709
=000 D14 I 10 10 5505 2B I A=60lB=60lt=515D=515E=4l89-,4lDl~
HEAN
m Dl2 f 4D 40 3850 15 1 A=ll<;JB=>B1C=11Dl
~
"' D14 I 1D 10 5390 2B I A=00lB=60l[=S1SD=S1SE=4l89-·4112~ rn Dl2 I 4D 40 2050 99 1 A=Sl0B=l49[=14l4
Gd-HEAN a1=91·ai=10·
ODO DID I 40 4B 1570 19 I Ao17l Sol45 [01349-•l61
~ OlB D11 I 4D 40 1350 15 1 Ao69JBol91[oiJJ
~HEAN rM51
009 D8 I 11 11 1480 99 1 A~299-·149 B~lSI t~J15
n. m D1D I 4D 40 1350 13 1 A~1215
t=::=iHEAN
OIO Dl2 I 4 4 1070 99 1 A~l1Q BdQD
~ 040 DB I 4 4 1130 99 2 A~9B B~Jl1 Cdl5
n.'
Off DIB I 40 40 5960 99 1
'
041 DB I 8 B 1140 99 2 Ao1Q1 Bol51 [0315
n.HEAN
AolBJ Bo1415-•151J [o341-•l!1 Do1'1l-•151l
oJ45-•l9BfolBJ
,.1~1J1• o.l~11° '"'Mi8° o.t.~11° o.S~1Jl0
""'""" OTP- '""""•-OT>- A.-ooCA[)o-011'-
c c
Total Lengths and Weights
Number of members I
Type T Type R BENDING DIAMETERS Imm]
-
Diameters B 8 ID 12 14 16 18 10 11 19 1B f1 lB 40 Lengths of standard hooks Imm)Tot~l Weight Total Total Weight Total
Hoo•sDiameter Length per unit Weight Length per unit Weight lB 48 00 11 84 % !08 120 111
''° 114 190 188 l10
,,, (kg/ml (kg) ,,, lkg/m) [kg] 0
IType11 10,.motors I o I e I 10 I 12 I 14 I 10 I 18 I 10 I 21 I 2s I 28 I 12 I io I 40
- F"mes 14 11 40 48 90
" !08 '10 111 190 114 190 188 l10
B 0 0.222 0.00 IType21
-
Hoo•• 0 0 0 0 0 0 0 0 0 0 0 0 0 0 1~~;:~·8 110 0395 43.56 IType11 11 %
'" '" f08 m 1f0 140
"' '°° m m rn
'"°- 8 0
ID ff] 0617 72 07 Fromes 0 D D 0 0 0 0 0 0 0 0 0 D D
@_
Fram.. 11 %
'" '" "" m 1f0 140
"' '°° m 98' rn 480- ITvoe 2) 1Type11
11 BBB O.B8B 609.06
1~~;:~· 0 0 0 0 0 0 0 0 0 0 0 0 0 0-
14 149 1210 422.65 8
- Frames 0 0 0 0 0 0 0 0 0 0 0 0 0 0
16 989 1.580 89216 iT"'e11
-
BAR DIMENSIONSfB l7D 2000 739 20
-
D ODD 1~~;:~·10 2 410 - THE DIMENSIONS ARE GIVEN ON THE OUTSIDE FIBER OF THE REBAR (SEE BELOW)
" 48 00 11
" %
'°" "° m
''° '°" m 1f0 140
-
ff
0
11 8 2 980 880 -THE TOTAL LENGTHS ARE CALCULATED ON THE BASIS OF THE CENTERLINE Frames
" 48 00 11
" %
'°" "° m
''° '°" m 1f0 140- 1Type11
19 8 3 BSO D08 [ISO 3766:2004 - METHOD Bl
-
- THE BENDING ANGLES ARE GIVEN IN DEGREES - 1~~;:~· 0 0 0 0 0 0 0 0 0 0 0 0 0 0
18 0 4 830 DDO 8
- Frames 0 0 0 0 0 0 0 0 0 0 0 0 0 0
11 0 6.310 0.00
rl____1
'
iT'"e11
-
lB 0 7 990 0.00 ,,-
4D 0 9.860 0.00 l'nchorage ;; ;; ;; ;; ;; ;; 11 00
" '" m
'" 144 ,00
-
;t- 0
1Type1)
~j
Frames ;; ;; ;; ;; ;; ;; 11 00
" '" m
"" 144
''°ITvpe11
Type T Type R '-- l'nchorage 0 0 0 0 0 0 0 0 0 0 0 0 0 01Type11
Total Length - Bended:
8
Frame>12SS 0 0 0 0 0 0 0 0 0 0 0 0 0 0
ITvnell
Total Length - Straight 941
"Total Length lml 2197
Toto! Weight - Bended 1610 "
Total Weight - Straight 1169
Total Weight (kgl: 2779
,,
Mean Size Imm] GENERAL WEIGHT kg
)/I
14 l
I I
2779
I
'"""Ml•DTP
•~.o.•• -Ill•- "'"'"[)o-011'-
CLIENT:
11
PROJECT IMPLEMENTATION CONSULTANT FILE NAMEITtN BAN v£ : SCALEITYLe: STATUS TfNHTR6NG: PROJECTIDIJAN : HANOI PILOT LIGHT METRO LINE Sedian Nhon •Hanci RailwayStation
• a-io E>Au ru: nrvAN THl,fC Hli;:N DI/ AN PIC-TEC-GRR-ll'No.ID4-1851:Hl_llADWG - Technical Design
Tuv£N SOONG sAT E>0 THI THI -E>li:M TP HA N()I Elofn N~n - Ga Hil NOi
• SYSTRAS.A
u "' 12/0D'12 Upo..d A.K 3.Maurls
."'"' HRB
DESIGNED BY THltr K£ : FORMATKHO BAN ve: DATEINGAY: TTTlEITtN BANVE: NHUE RIVER CROSSING
2A
''"""' 2nd aubmllalan ar lectmlcal daalgn A.K ].Meurls
·-'
A.K A1 31/01/10 WQT SONG NHUe
~~ 1C
""'"" """"'"' A.K G.Meur1s
·-' CHECKEDBYsoAT: This d'awilg must not be eilhlr IDMed, o:ipi!lcl orOlharwiae rep'Ocluoed DECK - SA3'-SB3" - REINF - BAR LIST - 2 / 2.s ,. ""'"" UPDATE9 A.K ~.Maurls P.Amaud HANOI ME'TROPOUTAN RAIL TRANSPORT PROJECT BOARD
G. Maurls In - er h pmrt ar uucl for •nr prupmaWlhoullho prkrwrlllln
•• BAN·~ AN oU'ONo sAroO THI HANQI pennllillon ol HRB. BAN ~T cAU - SA3'-SB3' - COT lHi:_P - DANH MVC THANH - 2 I ~
H 1A 31/01/10 Flllll lssua A.K 3.Maurls
·-'REVISION
""" DESCRIPTION
-· ..,.,. (Hl'CflE!QI
PROJECTDIRECTORIGINAeocDIJ AN : CHIEF CESIGNERCll) NHla,lTHl£'TK£ : Mn vii My kh!lng 4JVC ~RI) d,lng - mol h"rlh lh)c, m(ll phln hrly DR.WING NO.IBANVESO :
I3An SO'AElOI ""y NOi DUNG sCrA.ElOI m• ..T ailrtil;Mllil~~ Alain B~chereau P.Amaud
kllln ~ mll kh!lng41VC..,Mngf'blngvllnbllncilll HRB.
PIC-TEC-GRR-WVO-J04-18513-B
~
9!
:l:
iii
t
i
~ii:
15
ES1 S1 SAB' SA7' SAS'
=---
01
.,o
LAN CAN c!!!
STARTER BARS cl.&
niANH COT THE.P NHO RA';:
N
0
-----REBAR ADJUSTMENT
EJliW CHINH niANH COTTH!l:P
FOR PT CONFLICT
£>01 VO'I XUNG E>OT PT
-~ @
=_,"'
~@,
SA9 S3 SB9
KEY PLAN
Ki; HO~CH CH[NH
SCALE : 1/200
TI'Ll;:1/200

REB AR AD JUSTMENT
2x20-018 Q £>1eucHINHTHANHCOTTHeP
[W150 ~ FOR PT CONFLIC T '.'1
£>01 VOi XUNG £>0T PT 
---s 2x23- D16
[W150 ~~~;:;;~~~~~;;;;;;;;~~N~~~~~::;;;;;;:;;;;;;;;~~~~~;;;;r=1~~/-_r----0_16_s ~~-
I!!
~
uw .!:
F %
!I $i
!;l 8
uB
®0
~~
'7@,__, _
N~
N
x
~
( ,, '
(
' (
~
'
I :i--  L--J ....-
t~
fu 1 ~ 
~
Ii
l,j
@> 2x2-016
c::
_ ,,______ ~ -- ~~~
~ - - ~·
DETAILX
CHI Tli;:T X
SCALE: 1110
TI'LI;: 1/10
~I8
-
( (
-U_
o----+----+----------------+----...,___...,____. Q.IENT:
o----+----+----------------+----...,___...,____. CHOflAuru:
3B 12J051'12 Up Dalod A. K
3" 21/11Y11 Upda111d A.K
2A 3(WU11 2nd aubml11lon at'lechnlcal dMlgn A . K
1C ~8110
$
=o=
'=~o
,,~
__, 113,
0SECTION A-A
MAT CATA-A n
SCALE: 1120
ti' Li;:1120
HRB
18 2MIBl10
Upda111d A. K
UPDATED A. K HANOI METROPOLITAN RAIL TRANSPORT PROJECT BOARD
1----+--+-F-lm--..--------------+,.-_K---4---4-----1 BAN DI/AN llWNG IA.TllOTHI llANQI1A 31m1110
REVISION DATE
SLrAOOI Nal.Y
DESCRIPTION
NQI DUNGWAfJOI
IHIHl!BI'
HIM!
CllllClllBI'
IOI.!
•PROJECT IMPLEMENTATION CONSULTANT
11 VAN THl,IC HleN DI,/ AN
SYSTRAS.A
PROJECTDIRECTORGIAMaocDI/AN:
Alain B~cheraau
FILE NAA1ElTtNBAN/£:
PIC-TEC-GRlt-Wv'OJD4-1151&B_lB.DWG
DESIGNED BYTH1£TK£ :
A. K
CHECKED BYSlll.T:
G. Maur1s
CHIEF ~IGNERCll) NHleMlll1£rK£:
P. Amaud
SA4
SB4
~~
9•
~  , ,_
,~
DETAILX ) L
c.-
CHI n£Tx
~
@
E;I
~
-i
15I
I!!..N
SCALE TYLE:
FORMATKHO BAN VE:
A1
SA3
SB3
@) @032 033
~1 ~1
SA2
SB2
   _  _  _  _    ~  
 . _    , ,
~
I-
'
,___
L-
-'-
,_ -L- '-
- L- - L- -,_ - J'-
,_ l.-
,_ ,___
- l-
-:: -!;'.: p'-
~
-~
I

,___
Q
~
I/1
~Pl I-<'-"'
2x20- 012
@@150
-
M0- 018 @§@150
BUSTER TYPE 5
I/ ~~b~CEMENTSEEDWG.

COT THE.P XEM BAN /£
0-J04-18654-BPIC-TEC-GRR-WV
PIC-TEC-GRR-WV0-J04-18655-B
014
s
014
@
SECTION 8-8
§ n
MAT CAT B-B
STAlUS TfNH~G :
SCALE: 1120
rtu;:1120
NOTES: ~~~~~~~~~~~~~~~~~~~~~~
GHI CHiJ:
1. REINFORCEMENT YIELD STRENGTH: FY=420 MPA.
1. ClldNG £>0 CHAY CllA cx:fTTHE'.P :fy--420 Mpa
2. CONCRETE COVER: C=50 MM.
2. Ld PeeTONG e.<ov£c=50 mm
3. FOR PARAPET s-rARTER BARS REFER TO DWG. NO.
3. £>E. XEM THANH COT THe!P CHO'COA LAN CAN XJN XEM BAN /£SO
PIC·TEC-ORR·WVO-J00·18803-B TO PIC·TEC-GRR·WVO-J00-1880S.-B
Teclmical Oesign
PROJECT CVAN: HANOI PILOTLIGHT METRO LINE Sedion Nhon•HantiRailway S1alial
TIJY£NflOONG sATElOTHITHIfll~M 1l'HA NQI Elatn N~n · Ga Hi NOi
DAlENGAY:
31f01f10
mtETtNBANVE: NHUE RIVER CROSSING
VU'QT SONG NHUI;:
Thil <Rwi'ID mUll:notbe eithlrlOlrled,<q>ied«otl'lll'Wile NP'Odiacl
ln wtdeah P11rtorul8dfor•nr prupmewllhoul:.. prlor'Mltsl
parmlllllonot HRB.
DECK- SA3-SB3 - REINF -1/2
BAN ~T cAU - SA3-SB3 ·COT THi:P - 1 / 2
......My_..,.,._......."11 ..... ..,.. .... _m(llpMnt.y
....~ ...- .........~t~'"""'""'""""·
DRAl'l1NGNO. BANV£SO:
PIC-TEC-GRR-WVO-J04-18516-B 38
Boe Type No fNb~·, Total Shape Bend Boe Type No." 1~fNbo;'.~Total IL ~h~hapeIBend Boe Type No. lifN~;, Total Shape Bend
mark ;od of
"'"h No Length Code Type Dimensio~s Shape R"' mark ;od of inmh No eng Code Type Dimensions Shope R"' mar< ;od of ioeach No Length Code Type Dimensions Shape R"'
"" momb mmb size m.mb momb size memb m•mb
" " '' " " " '' " " " " "
001 B1B I 4B 4B 3740 BB A=rn-o
= on CB I 120 120 980
" 1 A=119 B=J00-•401
b 001 CB I B B 1160
" 1 A=B6 B=l51 [=140 D=l15
nMEAN
001 012 I 110 110 3550 BB AdSIO
= °" "'" I 4B 40 3280 fB 1 A=l490B=llllt=!D1
~ "' Dl6 I 12 12 1340 51 1 A=160 8=160 [=14l
g
oo; 014 I lB lB 3650 DD Ad65l
= m Dl6 I 10 10 6270 15 1 A=ll34B=il[=l1l4
~ "" Dl6 I 4 4 1100 11 1 A=490 B=10l [=48l y
004 Dl6 I 4B 4B 3750 DO A=ll49
= m Dl6 I 10 10 3710 DD A=l709
=000 D14 I 10 10 5505 2B I A=60lB=60lt=515D=515E=4l89-,4lDl~
HEAN
m Dl2 f 4D 40 3850 15 1 A=1012B=565C=IJ!I
~
"' D14 I 1D 10 5390 2B I A=00lB=60l[=S1SD=S1SE=4l89-·4112~ rn Dl2 I 4D 40 2050 99 1 A=Sl0B=l49[=14l4
Gd-HEAN a1=91·ai=10·
ODO DID I 40 4B 1570 19 I Ao17l Sol45 [01349-•l61
~ OlB D11 I 4D 40 1350 15 1 Ao69JBol91[oiJJ
~HEAN rM51
009 D8 I 11 11 1480 99 1 A~299-·149 B~lSI t~JlS
n. m D1D I 4D 40 1350 13 1 A~1215
t=::=iHEAN
OIO Dl2 I 4 4 1070 99 1 A~l1Q BdQD
~ 040 DB I 4 4 1130 99 2 A~9B B~Jl1 Cdl5
n.•
Off DIB I 40 40 5960 99 1
'
041 DB I 8 B 1140 99 2 Ao1Q1 Bol51 [0315
n.HEAN
AolBJ Bo1415-•151J [0341-•l!l Do1'1l-•151l
oJ45-•l9BfolBJ
,.1~1J1• "'2~11° <l'Mi8° o.4~11° o.S~1Jl0
""'""" OTP- '""""•-OT>- A.-ooCA[)o-011'-
c c
Total Lengths and Weights
Number of members I
Type T Type R BENDING DIAMETERS Imm]
-
Diameters B 8 ID 12 14 16 18 10 11 19 1B f1 lB 40 Lengths of standard hooks Imm)Tot~l Weight Total Tot~l Weight Total
Hoo•sDiameter Length per unit Weight Length per unit Weight lB 48 00 11 84 % !08 120 111
''° 114 190 188 l10
,,, (kg/ml (kg) ,,, lkg/m) [kg] 0
IType11 10,.motors I o I e I 10 I 12 I 14 I 10 I 18 I 10 I 21 I 1s I 28 I 12 I 30 I 40
- F"mes 14 11 40 48 90
" !08 '10 111 190 114 190 188 l10
B 0 0.222 0.00 IType21
-
Hoo•• 0 0 0 0 0 0 0 0 0 0 0 0 0 0 1~~;:~·8 110 0395 43.56 IType11 11 %
'" '" f08 m 1f0 140
"' '°° m m rn
'"°- 8 0
ID ff] 0617 72 07 Fromes 0 D D 0 0 0 0 0 0 0 0 0 D D
@_
Frame. 11 %
'" '" f08 m 1f0 140
"' '°° m 98' rn 480- ITvoe 2) 1Type11
11 BB9 O.B8B 608 08
1~~;:~· 0 0 0 0 0 0 0 0 0 0 0 0 0 0-
14 149 1210 422.65 8
- Frames 0 0 0 0 0 0 0 0 0 0 0 0 0 0
16 989 1.580 89210 iT'"•ll
-
BAR DIMENSIONSfB l7D 2000 739 20
-
D ODD 1~~;:~·10 2 410 - THE DIMENSIONS ARE GIVEN ON THE OUTSIDE FIBER OF THE REBAR (SEE BELOW)
" 48 00 11
" % !08
"° m
''° f08 m 1f0 140
-
ff
0
11 8 2 980 880 -THE TOTAL LENGTHS ARE CALCULATED ON THE BASIS OF THE CENTERLINE Frames
" 48 00 11
" % !08
"° m
''° f08 m 1f0 140- 1Type11
19 8 3 850 D08 [ISO 3766:2004 - METHOD Bl
-
- THE BENDING ANGLES ARE GIVEN IN DEGREES - 1~~;:~· 0 0 0 0 0 0 0 0 0 0 0 0 0 0
18 0 4 830 DDO 8
- Frames 0 0 0 0 0 0 0 0 0 0 0 0 0 0
11 0 6.310 0.00
rl____1
'
iT'"•ll
-
lB 0 7 990 0.00 ,,-
4D 0 9.860 0.00 l'nchorage ;; ;; ;; ;; ;; ;; 11 00
" '" m '18 144 ,00
-
;t- 0
1Type1)
~j
Frames ;; ;; ;; ;; ;; ;; 11 00
" '" m
"" 144
''°ITypell
Type T Type R '-- l'nchorage 0 0 0 0 0 0 0 0 0 0 0 0 0 01Type11
Total Length - Bended:
8
Frames1255 0 0 0 0 0 0 0 0 0 0 0 0 0 0
ITvnell
Total Length - Straight 941
"Total Length lml 2195
Toto! Weight - Bended 1610 "
Total Weight - Straight 116B
Total Weight (kgl: 2778
,,
Mean Size Imm] GENERAL WEIGHT Kg
)/I
14 l
I I
2778
I
'"""Ml•DTP
•~.o.•• -Ill•- "'"'"[)o-011'-
CLIENT:
11
PROJECT IMPLEMENTATION CONSULTANT FILE NAMEITtN aMIv£ : SCALEITY Le: STATUS TfNHTR6NG: PROJECTIDIJAN : HANOI PILOT LIGHT METRO LINE Sedian Nhon •Hanci RailwayStation
• a-io E>Au ru: TJVAN THl,fC Hli;:N Dl,f AN PIC-TEC-GRR-ll'No.ID4-1851Hl_llADWG - Technical Design
Tuv£N SOONG sAT E>0 THI THI -E>li:M TP HA N()I Elofn N~n ·Ga Hil NOi
• SYSTRAS.A
u "' 12/0D'12 Upo..d A.K 3.Maurls
."'"' HRB
DESIGNED BY THltr K£ : FORMATKHO BAN ve: DATEINGAY: TTTlEITtN B.MiVE: NHUE RIVER CROSSING
2A
''"""' 2nd aubmllalan ar lectmlcal daalgn A.K ].Maurls
·-'
A.K A1 31/01/10 WQT SONG NHUe
~~ 1C
""'"" """"'"' A.K G.Maur1s
·-' CHECKEDBYsoAT: This d'awilg must not be eilhlr IDMed, o:ipisd orOlharwiae rep'Ocluoed DECK - SA3-SB3 - REINF - BAR LIST - 212.s ,. ""'"" UPDATE9 A.K ~.Maurls P.Amaud HANOI METROPOLITAN RAIL TRANSPORT PROJECT BOARD
G. Maurls In - er h pmrt er uled for •nr prupmewthoullho prkrwrlllln
•• BAN·~ AN oU'ONo sAroO THI HANQI pmnnmlon ol HRB. BAN ~T cAU · SA3-SB3 · COT lHi:_P - DANH MVC THANH · 21
H 1A 31/01/10 Flllll lsaua A.K 3.Maurls
·-'REVISION
"'"
DESCRIPTION
-· ..,,,. (Hl'CflE!QI
PROJECTDIRECTORIGINAeocDIJ AN : CHIEF CESIGNERICll) NHla,lTHl£T K£ : Mn vii My kh!lng 4JVC ~RI) d,lng - mol h"rlh lh)c, rr(ll phln hrly DR.WING NO.IBAN VE SO :
I3An SO'AElOI ""y NOi DUNG sO'A.ElOI m• ..T ailrtil;Mllil~~ Alain B~chereau P.Amaud
kllln ~ mll kh!lng41VC..,Mngf'blngvllnbllncilll HRB.
PIC-TEC-GRR-WVO-J04-18517-B
~
9!
it
i
~ii:
15
ES1 S1 SAS' SA7' SA6'
~
REBAR ADJUS TMENT
Ellil:U CHINH THANH COT THil:P
FOR PT CONFLICT
=-- 001.l!.Q! XU~ flQT PT i'@
I!!
~
uw g
®' 8 10
RAP =e~ ~
LAN CAN D
'1'&
STARTER BARS 0
THANH COT THe!P NHO RA ';:
I
t ~
~ ~@ 2x 2-D16
c::
2x20-D12
(11150
--- fo04' ___,2""x"'26'--"'-D,,,16'-----~
~ @l150
@O
"'"'- <-
'T@.,..,._
N ";i
'-;;
N
I I
ll I l....---' --1..-
II I
~
w w
_ L _ _ ~ -- L..._____ ~ l...._ ~ .1....____. _ _ L..._____ .
DETAILX
CHITl~TX
SCALE: 1/10
Ti'LIO: 1/10
@
...,o
c'°I II.
0
.........
I
~
I
- Li
0 n
@9
"'"' ~~
~- ~-0
... 0
....
'------J '------J
9 0= =_, "'
o @- """'6 s;@,
N =N
SECTION A-A
MAT CAT A-A
SCALE: 1/20
Ti'Ll;.:1/20
o----+----+----------------+----....___....____. Q.IENT:
o----+----+----------------+----....___....____. CHOflAuru:
3B 12J05112 Up Dalod A. K
3" 21/11Y11
2A 3004'11 HRBUpda111d A. K
2nd aubml11lon at'lechnlcal dMlgn A . K
1C ~8110
n
9
!g,_
';:A
...
~
@
I I
•
SA9 S3 SB9
KEY PLAN
Ki;: HO~CH CHiNH
SCALE: 1/200
Ti'LI;.:1/200
n
0
.,g
co
·-c;:&
...
REBAR ADJUSTMENT
2x20-018 Q  EJlt':UCHINHTHANHCOlTHe!P
@l1SO ('._'./'  FOR PT CONFLICT "1
PROJECT IMPLEMENTATION CONSULTANT
11 VAN lHl,IC HleN DI,/ AN
SYSTRAS.A
001VOi XUNGflOT PT 
FILE NAA1ElTtNBAN/£:
DESIGNED BY TH1£TK£ :
A. K
CHECKED BYSlll.T:F %
!I $i
18 2Ml&'IO
!;l 8 G. Maur1s
Upda1ad A.K
UPDATED A. K HANOI METROPOLITAN RAIL TRANSPORT PROJECT BOARD
1----+---+-F-lm- -..--------------+,.-.K---4---4----1 BAN DI/AN llWNG IA.TllOTHI llANQI
u 1A 31m1110
REVISION DATE
B SLrAOOI Nal.Y
DESCRIPTION
NQI DUNGWAfJOI
IHIHl!BI'
HIM!
CllllClllBI'
IOI.!
PROJECTDIRECTORGIAMaocDI/AN: CHIEF~IGNERCll) NHleMTH1£rK£:
Alain B~cheraau P. Amaud
SA5' - - - SM'
584'
SA3'
SB3'SB5' 0
§ @>032 033
~~
'1'&.,. ;;I ;;j!;!:!
,           j  
 ,.-,     ~
,1
.L
DETAILX )
L.'- ' ~
CHITle!TX
.
~
@) --- -'--
-
- -c.- L-
-c.- -
c.- c.-
~
I/
-c-
~
I/'I
I-+-
2x20 012
@l 50 @)-
2x20-018 @§@l150
BLISTER TYPE 4
/ RO LOAl4
REINFORCEMENTSEE DWG.
ve
WV0-J04-18654-B
COTTHe!PXEM BAN
PIC-TEC-GRR-
PIC-TEC-GRR-WV0-J04-18855-B
..-.,; '::::' 'c:: - -, I N
- ~
0 L---~ - ·-1--
-- -'<c
~ .......
014
8
014-
@;l
c 08
~~
:ti& SECTION B-8
@) n
MATCATB-B
SCALETYLE:
FORMATKHO BAN VE:
A1
STAlUS TfNH~G :
Teclmical Design
DATENGAY:
31/01/10
Thil <Rwi'IDmUll:notbe eithlrlOlrled,<q>ied«otl'lll'Wile NP'Odiacl
ln wtdea h P11rt orul8dfor•nr prupmewllhoul:.. prlor'Mltsl
parmlllllonot HRB.
......My_..,.,._.,,..,ng.....""'"""-"""iHn'-Y....~ ...- .........~ t ~ ,,.,,..., ...HRB.
SCALE : 1120
Ti' Li;:1/2D
NOTES: ~~~~~~~~~~~~~~~~~~~~~~
GHICHL.f:
1. REINFORCEMENT YIELD STRENGTH: FY=420 MPA.
1. ClldNG DO CHAY CllA cx:fTTHE'.P :fy---420 Mpa
2. CONCRETE COVER: C=50 MM.
2. Ld PBe! TONGe.<oV£c=5D mm
3. FOR PARAPET S"fARTER BARS REFER TO DWG. NO.
3.Ell: XEM THANH COT THe!PCHO'COALANCAN XJNXEM BAN VESO
PIC-TEC-GRR-WVO-J00-18803-B TO PIC-TEC-GRR-WVO-J00-18808-B
PROJECT CVAN: HANOI PILOTLIGHT METRO LINE Sedion Nhon•HantiRailwayS1atial
TIJY£NflOONG sATElOllilTHIfll~M 1l'HA NQI ElatnN~n · Ga Hi NOi
Tm.E TtNBANVE: NHUE RIVER CROSSING
VU'QT SONG NHUI;:
DECK- SA4'-SB4' - REINF -1/2
BAN W.T c:Au .SA4'-SB4' - cOT n -11:.P. 112
DRAl'l1NGNO. BANV£SO:
PIC-TEC-GRR-WVO-J04-18520-B 38
Boe Type No fNb~·, Total Shape Bend Boe Type No." 1~fNbo;'.~Total IL ~h~hapeIBend Boe Type No. lifN~;, Total Shape Bend
mark ;od of
"'"h No Length Code Type Dimensio~s Shape R"' mark ;od of inmh No eng Code Type Dimensions Shope R"' mar< ;od of ioeach No Length Code Type Dimensions Shape R"'
"" momb mmb size m.mb momb size memb m•mb
" " '' " " " '' " " " " "
002
"' 1 150 150 3550 00 A=l550
= on
'" 1 100 100 rn
" 1 A=119 B=JOO
b 002 CB 1 B B 1160
" 2 A=B6 B=l51 [=140 D=l15
noo; Cf4 1 35 35 3650 00 Ad610
= °" C1a 1 40 40 3280 15 1 A=l490B=llllt=!D1
~ "' C15 1 12 12 1340 51 2 A=160 8=160 [=14l
g
001 C15 1 5' 5' 3750 00 Ad1>9
= m C15 1 20 20 6270 15 1 A=ll34B=il[=l1l4
~ °" C15 1 4
' 1100
" 2 A=490 B=10l [=48l y
000 Cf4 1 20 20 5585 25 1 A=00lB=60J[=5150=575E=4ll9-•445J~ m C15 1 20 20 3710 00 A=l709
=HEAN
'°' C14 1 20 20 5500 25 1 A=60lB=60lt=515D=515E=4l89-·4lBB~
HEAN
m C12 f 40 40 3850 15 1 A=1012B=565C=IJ!I
~
'°" CID 1 40 40 1510 15 1 A=l1l 8=141 [=1349
~ rn C12 1 40 40 2050 99 1 A=Sl0B=l49[=14l4
Gd-a1=91·ai=10·
009 CB 1 12 12 1380 99 2 A=199-•149 B=l51 (=llS
IF OlB C12 1
'° '° 1350 15 1 A=69lB=l91[=1Jl
~HEAN rM51
010 C12 1 5 5 1020 99 2 A~l9J B~15C
~ m CID 1
'° '° 1350 13 1 A~1115
t=::=i
· IF011 C18 1 40 40 5430 99 2 .. m C8 1 4 4 1130 99 2 A~9B B~Jl1 Cdl5
HEAN
A=IBl B=110-•1l1B C=181 D=11lB-•1l11 E=19l F=IBl 001 C8 1 B B 1140 99 2 A=101 B=l51 C=l15
IF<>1=1l5.a.1=ll·lll=118.114=11·...s=1l5.
ko•CA[)o-OTP- '""""°•-OTP- A.-ooCA[)o-011'-
c c
Total Lengths and Weights
Number of members 1
Type T Type R BENDING DIAMETERS Imm]
-
Diameters 5 B 10 12 10 15 1B 22 22 25 2B 12 35
'° Lengths of standard hooks Imm)Tot~l Weight Total Total Weight Total
Hoo•sDiameter Length per unit Weight Length per unit Weight
" " '° 22
"' % 100 120 132
''° "' 250 2BB 320
,,, (kg/ml (kg) ,,, lkg/m) [kg] 0
IType11 lo,.motors I o I e I 10 I 12 I 14 I 10 I 18 I 10 I 21 I 2s I 28 I i2 I io I 40
- F"mes
" 32
'° " 55
" 10B 122 132 150
"' 255
'"" 320
5 0 0.222 0.00 IType21
-
Hoo•• 0 0 0 0 0 0 0 0 0 0 0 0 0 0 1~~;:~·B 92 0395 36.53 IType11 12 %
'" '" '" m
'" m
"' '°° m m rn m
- 0 0
10 114 0617 70.58 Fromes 0 0 0 0 0 0 0 0 0 0 0 0 0 0
@_
Frame. 12 %
'" '" '" "' '" ''° "' '°° m
'"' rn m- ITvoe 21 ITypell
12 829 O.B8B 735.81
1~~;:~· 0 0 0 0 0 0 0 0 0 0 0 0 0 0-
14 353 1210 427.25 0
- Frames 0 0 0 0 0 0 0 0 0 0 0 0 0 0
15 415 1.580 655 83 iT'"•ll
-
BAR DIMENSIONS18 348 2000 696 80
-
0 000 1~~;:~·20 2 470 - THE DIMENSIONS ARE GIVEN ON THE OUTSIDE FIBER OF THE REBAR (SEE BELOW) ;;
" '° 12
"' % 100
"° m
''° 100 m
'" '"-
ff
0
22 0 2 9BO 000 -THE TOTAL LENGTHS ARE CALCULATED ON THE BASIS OF THE CENTERLINE Frames
" " '° 12
"' % 100
"° m
''° 100 m
'" '"- ITypell
25 0 3 850 0 00 [ISO 3766:2004 - METHOD Bl
-
- THE BENDING ANGLES ARE GIVEN IN DEGREES - 1~~;:~· 0 0 0 0 0 0 0 0 0 0 0 0 0 0
2B 0 4 830 0 00 0
- Frames 0 0 0 0 0 0 0 0 0 0 0 0 0 0
32 0 6.310 0.00
rl____1
'
iT'"•ll
-
35 0 7 990 0.00 ,,-
'° 0 9.860 0.00 l'nchorage ;; ;; ;; ;; ;; ;; 12
'° " '°' "' 100
'" ''°-
;t- 0
1Type1)
~j
Frames ;; ;; ;; ;; ;; ;; 12
'° " '°' "' 100
'" '"ITvpell
Type T Type R '-- l'nchorage 0 0 0 0 0 0 0 0 0 0 0 0 0 01Type11
Total Length - Bended: 1219
0
Frames
ITvnell 0 0 0 0 0 0 0 0 0 0 0 0 0 0
Total Length - St-raight 9ll
"Total Length lml 2152
Toto! Weight - Bended 1566 "
Total Weight - Straight 1057
Total Weight (kgl: 2623
,,
M~an Size Imm] GENERAL WEIGHT kg
)/I
141
I I
2623
I
'"""Ml•DTP
•~.O.D• -OTP-
"'"'"'"-011'-
•
CLIENT:
11
PROJECT IMPLEMENTATION CONSULTANT FILE NAMEITtN aMIv£ : SCALEITY Le: STATUS TfNHTR6NG: PROJECTIDIJAN : HANOI PILOT LIGHT METRO LINE Sedian Nhon •Hanci Railway Station
• a-io E>Au ru: TJVAN THl,fC Hli;:N Dl,f AN PIC-TEC-GRR-ll'No.ID4-18521-6_3ADWG - Technical Design
Tuv£N SOONG sAT E>0 THI THI -E>li:M TP HA N()I Elofn N~n ·Ga Hil NOi
• SYSTRAS.A
u "' 12/0D'12 Upo..d A.K 3.Maurls
."'"' HRB
DESIGNED BY THltr K£ : FORMATKHO BAN ve: DATEINGAY: TTTlEITtN B.MiVE: NHUE RIVER CROSSING
2A
''"""' 2nd aubmlllalan arlectmlcal daalgn A.K ].Maurls
·-'
A.K A1 31/01/10 WQT SONG NHUe
~~ 1C
""'"" """''"' A.K G.Maur1s
·-' CHECKEDBYsoAT: This d'awilg mustnotbe eilhlrIDMed,o:ipisd orOlharwiaerep'Ocluoed DECK - SA4'-SB4' - REINF - BAR LIST - 2 / 2.s 18
""'"" UPDATE> A.K ~.Maurls P.Amaud HANOI METROPOLITAN RAIL TRANSPORT PROJECT BOARD
G. Maurls In - er h pmrt er uucl for •nr prupmeWlhoullho prkrwrlllln
•• BAN·~ AN oU'ONo sAroO THI HANQI pmnnmlon ol HRB. BAN ~T cAU · SA4'·SB4' · COT lHi:_P - DANH MVC THANH - 2 I ~
H 1A 31/01/10 Flllll lsaua A.K 3.Maurls
·-'REVISION
""" DESCRIPTION
-· ""'"'" (Hl'CflE!QI
PROJECTDIRECTORIGINAeocDIJ AN : CHIEF CESIGNERICll) NHla,lTHl£T K£ : Mn vii My kh!lng 4JVC ~RI) d,lng - mol h"rlh lh)c, rr(ll phln hrly DR.WING NO.IBAN VE SO :
I3An SO'AElOI '"'y NOi DUNG sO'A.ElOI m• ..T ailrtil;Mllil~~ Alain B~chereau P.Amaud
kllln ~ mll kh!lng41VC..,Mngf'blngvllnbllncilll HRB.
PIC-TEC-GRR-WVO-J04-18521-B
~
9!
it
i
~ii:
15
ES1 S1 SAS' SA7' SAS'
~
REBAR ADJUSTMENT
£11£U CHINH THANH COT TH£P
FOR PT CONFLICT
=-- EOI VOi XUNG £10TPT t' n
I!!
~
uw .!:
F %
!I $i
!;l 8
uB
PARAPET m~
LAN CAN Ci,
STARTER BARS cl.
THANH c0T TH£P NH0 RA ';:
~
t 
tr[
~
0 2x2-D16
c::
- ~
·-
10
N
Ci
®0
"'"'~(i_,__
N~
N
x
{:::.
1 ~
I  __; -j I
~
,.
- ·
DETAILX
CHI Tli;T X
SCALE: 1/10
TYLS: 1110
3B 12.!05112 Up Dalod A. K
3" 21/11Y11 Upda111d A.K
2A 3(WU11 2nd aubml11lon at'lechnlcal dMlgn A . K
8........,
t:?&............
I
I
_....
I
I
I
J_
0 n @9.. .........,..
!g
~-
Ci~
I a..,.
·-.... ..... 0
...
-SECTION A-A
MAT CATA-A
SCALE: 1/20
rt Lf;::1/20
HRB
®
!8
·-c;:&
....
I I
1C ~8110
18 2Ml&'IO
Upda111d A. K
1--=--i;;;=-"--+-"u"'PD,t;=JED;...__ _ _ _ _ _ _ _ _ _ _ _"-,."".K"----==-.;..;..;;;=----1 HANOI METROPOLITAN RAIL TRANSPORT PROJECT BOARD
1A 31m1110
REVISION DATE
SLrAOOI Nal.Y
F1m -. " ·K BAN DI/AN allONG sA.TaO THI HANQI
DESCRIPTION
NQI DUNGWAfJOI
IHIHl!BI'
HIM!
CllllClllBI'
IOI.!
•
SA9 sa seg
KEY PLAN
K~ HOACH CHfNH
SCA(.E : 11200
rt Ll~:1/200
PROJECT IMPLEMENTATION CONSULTANT
Tl1 VAN THl,IC HleN DI,/ AN
SYSTRAS.A
PROJECTDIRECTORGIAMaocDI/AN:
Alain B~cheraau
FILE NAA1ElTeN e,1,1/£:
DESIGNED BYTHli;rK£:
A. K
CHECKED BYSlll.T:
G. Maur1s
CHIEF ~IGNERCll) NHleMTH1£r Ke:
P. Amaud
SA5 SM
SB4
SA3
SB3
' S2 ES2
SB5 0
§ @)
SCALE TYLE:
FORMATKHO BAN VE:
A1
STAlUS TfNH~G :
Teclmical Design
DATENGAY:
31/01/10
Thil <Rwi'ID mUll:notbe eithlrlOlrled,<q>ied«otl'lll'Wile NP'Odiacl
ln wtdeah P11rtorul8dfor•nr prupmewllhoul:.. prlor'Mltsl
parmlllllonot HRB.
......My_..,.,._.......ng ..... ..,.. .... _m(llpMnt.y
....~ ...- .........~t~'"""'""'""""·
M 0-018 fii11 0
@l1SO v g
BLISTER TYPE 4
R0L~4
REINFORCEMENT SEE DWG.
cOT TH£P XEM BAN VE
PIC-TEC-GRR-WVO.J04-18654-B
PIC-TEC-GRR-WVO.J04-18655-B
NOTES: ---------------------~
GHI CHL.f:
1. REINFORCEMENT YIELD STRENGTH: FY=420 MPA.
1. ClldNG E0 CHAY CllA cx:fTTHE'.P :fy---420 Mpa
2. CONCRETE COVER: C=50 MM.
2. Ld PBS TONG e.<oVE c=50 mm
3. FOR PARAPET S"fARTER BARS REFER TO DWG. NO.
3. EE. XEM THANH COT THe!P CHO'COA LAN CAN XJN XEM BAN VE SO
PIC-TEC-GRR-WVO-J00-18803-B TO PIC-TEC-GRR-WVO.J00-18808-B
PROJECT CVAN: HANOI PILOTLIGHT METRO LINE Sedian Nhon•HantiRailway S1atial
TIM:NellONGs>.r ElOTHITHIe1eM1l'HANQI Batn N~n . Ga Hi NOi
Tm.E~Ne,l,IVE : NHUE RIVER CROSSING
VU'QT SONG NHUI;:
DECK- SA4-SB4 - REINF -1/2
BAN ~T cAU - SA4-SB4 ·COT THi:P - 1 / 2
DRAl'l1NGNO. BANVESO:
PIC-TEC-GRR-WVO-J04-18524-B 38
Boe Type No fNb~·, Total Shape Bend Boe Type No.. lofNbo;,~Total IL ~h~hapeIBend Boe Type I No Total Shape BendNo ofb;r
mark ;od of
"'"h No Length Code Type Dimensio~s Shape R"' mark ;od of inmh No eng Code Type Dimensions Shope R"' mar< ;od of ioeach No Length Code Type Dimensions Shape R"'
"" momb mmb size m.mb momb size memb m•mb
" " '' " " " '' " " " " "
002
"' 1 150 150 3550 00 A=l550
= on
'" 1 100 100 rn
" 1 A=119 B=JOO
b 002 CB 1 B B 1160
" 2 A=B6 B=l51 [=140 D=l15
noo; Cf4 1 35 35 3650 00 Ad610
= °" C1a 1 40 40 3280 15 1 A=l490B=llllt=!D1
~ "' C15 1 1Z 1Z 1340 51 2 A=160 8=160 [=14l
g
001 C15 1 52 52 3750 00 Ad1>9
= m C15 1 zo zo 6270 15 1 A=ll34B=il[=l1l4
~ °" C15 1 4
' 1100
" 2 A=490 B=10l [=48l y
000 Cf4 1 20 20 5585 25 1 A=00lB=60J[=5150=575E=4ll9-•445J~ m C15 1 zo zo 3710 00 A=l709
=HEAN
'°' C14 1 20 20 5500 25 1 A=60lB=60lt=515D=515E=4l89-·4lBB~
HEAN
m CIZ f 40 40 3850 15 1 A=1012B=565C=IJ!I
~
'°" CID 1 40 40 1510 15 1 A=l14 8=140 C=m-6
~ rn CIZ 1 40 40 2050 99 1 A=Sl0B=l49[=14l4
Gd-a1=91·ai=10·
009 CB 1 1Z 1Z 1380 99 2 A=199-•149 B=l51 (=llS
IF OlB CIZ 1
'° '° 1350 15 1 A=69lB=l91[=1Jl
~HEAN rM51
010 C1Z 1 5 5 1020 99 2 A~l9J B~15C
~ m C10 1
'° '° 1350 13 1 A~1115
t=::=i
· IF011 CIB 1 40 40 5430 99 2 .. m CB 1 4 4 1130 99 2 A~9B B~Jl1 Cdl5
HEAN
A=IBl B=110-•1l1B C=181 D=11lB-•1l11 E=19l F=IBl 001 CB 1 B B 1140 99 2 A=101 B=l51 C=l15
IF<>1=1l5.a.1=ll·lll=118.114=11·...s=1l5.
ko•CA[)o-OTP- '""""°•-OTP- A.-ooCA[)o-011'-
c c
Total Lengths and Weights
Number of members 1
Type T Type R BENDING DIAMETERS Imm]
-
Diameters 5 B 10 1Z 10 15 1B
" zz 25 ZB 1Z 35
'°Tot~l Weight Total Tot~l Weight Total Lengths of standard hooks Imm)
Diameter Length per unit Weight Length per unit Weight Hoo•s
" " '°
;z
" % 100 120 132
''° "' 250 ZBB m
1,1 (kg/ml (kg) 1~1 lkg/m) [kg] 0
IType11 lo,.motors I 6 e I 10 I 12 I 14 I 10 I 18 I 10 I 21 I 2s I 28 I i2 I io I 40
- F"mes
" 32
'° " 55
" 10B 1ZZ 132 100
"' 255
'"" m5 0 0.222 0.00 IType21
-
Hoo••
1~~;:~·B 9Z 0395 36.53 IType11 0 0 0 0 0 0 0 0 0 0 0 0 0 0
" %
'" "' '" m
'" m
"'
;oo m
'"' rn m
-
" 0
_10_ 114 0617 70.58 Fromes
@_
Frame.
ITvne 2) 0 0 0 0 0 0 0 0 0 0 0 0 0 0 ITypell
" %
'" '" '" "' '" ''° "'
;oo m
'" rn m
1Z BZ9 O.B8B 735.81
1~~;:~·- 0 0 0 0 0 0 0 0 0 0 0 0 0 0
14 353 1210 427.25
"-
l~ra-:•;1 0 0 0 0 0 0 0 0 0 0 0 0 0 0
15 415 1.580 655 83
-
BAR DIMENSIONS1B 348 2000 696 80
-
0 000 1~~;:~·zo 2 470 - THE DIMENSIONS ARE GIVEN ON THE OUTSIDE FIBER OF THE REBAR (SEE BELOW) ;;
" '° " " " 100
"° m
'" 100 m
'" ''°-
d
0
zz o 2 9BO 000 Frames
- -THE TOTAL LENGTHS ARE CALCULATED ON THE BASIS OF THE CENTERLINE
ITypell
" " '° " " " 100
"° m
'" 100 m
'" ''°25 o 3 BSO 0 00 [ISO 3766:2004 - METHOD Bl
-
- 1~~;:~· 0 0 0 0 0 0 0 0 0 0 0 0 0 0
ZB 0 4 830 0 00 - THE BENDING ANGLES ARE GIVEN IN DEGREES
"-
N'-:'~1 0 0 0 0 0 0 0 0 0 0 0 0 0 0
32 0 6.310 0.00
rl____1
'-
35 0 7 990 0.00 ,,-
---'°---- 0 9.860 0.00 Anchorage ;; ;; ;; ;; ;; ;;
" '° " '" "' 100
'" ''°
Jt-
1Type1)
~J
0
Frames
ITypell
;; ;; ;; ;; ;; ;;
" '° " '" "' '" '" '"
Type T Type R '---- Anchorage
0 0 0 0 0 0 0 0 0 0 0 0 0 01Type11
Total Length - Bended: 1219 " Frame>
IT··-ell 0 0 0 0 0 0 0 0 0 0 0 0 0 0
Total Length - St-raight 933
"Total Length lml 2152
Toto! Weight - Bended 1566 "
Total Weight - Straight 1057
Total Weight (kgl: 2623
,,
Mean Size Imm] GENERAL WEIGHT kg
viI
141
I I
2623
I
'""""'""" •~.O.D• -OTP- "'"'"[)o-011'-
CLIENT:
11
PROJECT IMPLEMENTATION CONSULTANT FILE NAMEITtN BAN v£ : SCALEITYLe: STATUS TfNHTR6NG: PROJECTIDIJAN : HANOI PILOT LIGHT METRO LINE Sedian Nhon •Hanci RailwayStation
• a-io E>Au ru: nrvAN THl,fC Hli;:N DI/ AN PIC-TEC-GRR-ll'No.ID4-18525-6_llADWG - Technical Design
Tuv£N SOONG sAT E>0 THI THI -E>li:M TP HA N()I Elofn N~n ·Ga Hil NOi
• SYSTRAS.A
u "' 12/0D'12 Upo..d A.K G.Maurls
."'"' HRB
DESIGNED BY THltr K£ : FORMATKHO BAN ve: DATEINGAY: TTTlEITtN BANVE: NHUE RIVER CROSSING
2A
''"""' 2nd aubmllalan ar lectmlcal daalgn A.K "1.Meurls
·-'
A.K A1 31/01/10 WQT SONG NHUe
~~ 1C
""'"" """''"' A.K b.Meurls
·-' CHECKEDBYsoAT:
DECK - SA4-SB4 - REINF - BAR LIST - 212.s 18
""'"" UPDATE> A.K ~.Maurls .... Arnaud HANOI ME'TROPOUTAN RAIL TRANSPORT PROJECT BOARD
This d'awilg must not be eilhlr IDMed, o:ipi!lcl orOlharwiae rep'Ocluoed
•• G. Maurls In - er h pmrt ar uucl for •nr prupmaWlhoullho prkrwrlllln
H 1A 31/01/10 Flllll lssua A.K G.Maurls
·-' BAN·~ AN oU'ONo sAroO THI HANQI pennllillon ol HRB. BAN ~T cAU · SA4-SB4 · COT lHi:_P - DANH MVC THANH · 21
REVISION
"'"
DESCRIPTION
-· ..,,,. (Hl'CflE!QI
PROJECTDIRECTORIGINAeocDIJ AN : CHIEF CESIGNERCll) NHla,lTHl£'TK£ : Mn vii My kh!lng 4JVC ~RI) d,lng - mol h'rlh lh)c, m(ll phln hrly DR.WING NO.IBAN~ SO :
In SO'AElOI '"'y NOi DUNG sO'AElOi m• ..T ailrtil;llillil~~ Alain B~chereau P.Amaud
kllln ~ mll kh!lng41VC..,Mngf'blngvllnbllncilll HRB.
PIC-TEC-GRR-WVO-J04-18525-B 3A
~
9!
it
i
~ii:
15
ES1 S1 SAS' SA7' SA6'
-REBAR ADJUSTMENT
D1eu CHINH THANH COT ™eP
FOR PT CONFLICT
=-- 001 VOi XUNGflQT PT ~
I!!
~
uw .!:
19
PARAPET .. ""
STARTER BARS ~i,
0
0111
~-THANH COTTHeP NHO RA ';:
___ rQOI. ~2=-xco.29=--~0~16'---'
~ @1150
®0
~~
'7@_,._
N'°
~
x
N
~
t~
%-J
......
)..-
~
~
§) 2x2-016
c::
_ ,,______ ~ .- ~
I
l i i - ~ -
 I
<i
~ · - ~·
DETAILX
CHITIETX
SCALE: 1/10
Ti' LS: 1110
-@
~~
9•..N
"N
~
8
=5! ;l
9•..N
..N
'--
I
·- ll
0 n
9 @)
:em ~;;0
9• mo
Co 9•0
·-N ...... C>
N
L__J 1......--.....J
9 ©
= =...tu"> ...,."'
~~
o@,
6
N N
- $SECTION A-A
MAT CAT A-A
SCALE: 1120
Ti'Ll;.:1/20
o----+----+----------------+----....___..,.____. Q.IENT:
o----+----+----------------+----....___..,.____. CHOflAuru:
3B 12.!05112 Up Dalod A. K
3" 21/11Y11
2A 3(WU11
HRBUpda111d A.K
2nd aubml11lon at'lechnlcal dMlgn A . K
1C ~8110
n
@
..,g
Co
·-';'.!&
....
@@
!:!
c
'N
"N
"'o o
'=rno
x-
_;@
•
SA9 S3 SB9
KEY PLAN
K~ HOACH CHfNH
SCALE : 11200
TYLS:1/200
PROJECT IMPLEMENTATION CONSULTANT
11 VAN THl,IC HleN DI,/ AN
SYSTRAS.A
F %
!I $i
18 2MIBl10
!;l 8
Upda111d A. K
UPDATED A. K HANOI METROPOLITAN RAIL TRANSPORT PROJECT BOARD
l----+---+-F-1'"1--..--------------+-A-.K---4---4------1 BAN DlfAN llWNG IA.TllOTHI llANQI
u 1A 31m1110
REVISION DATE
B SLrAOOI Nal.Y
DESCRIPTION
NQI DUNGWAfJOI
IHIHl!BI'
HIM!
CllllCIDBI'
IOI.!
PROJECTDIRECTORGIAMaocDI/AN:
Alain B~cheraau
n
@
C>
mo
Co
·-c;:•
....
REBAR ADJUSTMENT
D1eu CHINH THANHCOT ™eP
FOR PT CONFLICT '""r
001 VOi XUNGflOT PT 
FILE NAA1ElTtNBAN/£:
DESIGNED BYTH1£TK£ :
A. K
CHECKED BYSlll.T:
G. Maur1s
CHIEF~IGNERCll) NHleMlll1£rK£:
P. Amaud
SA6.---
SB6' 0
~~
9Ci...:!
,--
,1
J_ c;-
DETAILX )
CHITleiTX
DOD
~
E;I """'
:!
c
~~
~-
SCALE TYLE:
FORMATKHO BAN VE:
A1
SAS'
SB5'
@ @)032 033
;;I ;;I
SM'
SB4'
         1  ~   
,...
:::::-

2x20 012
@l-@1150
M0-018 @§@1150
BLISTER TYPE 3
c-- t--
~
/ R0LON3
- L- - II REINFORCEMENT SEE DWG.
L-- L--
cOTTHeP XEM BAN veL- L--
~
I/L--
- - L- - (
~
PIC-TEC-GRR-WVO-J04-18654-B
L--
- L-- L--
;:!;:t-- ,_L....-
- ,_ c:::L....-
t-- - - - -~ ~
- -~ ~
PIC-TEC-GRR-WVO-J04-18655-B
I ~ ,_ ~
- 014
S L__/
014
~ L__J08
n
SECTION B-B
STATUS TfNH~G :
Teclinical Design
DAlENGAY:
31/01/10
MAT CAT B-B0
SCALE : 1120
TYLS:1/20
NOTES: ~~~~~~~~~~~~~~~~~~~~~~
GHICHL.f:
1. REINFORCEMENT YIELD STRENGTH: FY=420 MPA.
1.ClldNG DO CHAY CllA cx:fTTHE'.P :fy""-420 Mpa
2. CONCRETE COVER: C=50 MM.
2.Ld PBei TONG e.<o /£c=50 mm
3. FOR PARAPET S"fARTER BARS REFER TO DWG. NO.
3. Dei XEM THANH COT THe!P CHO'COA LAN CAN XJN XEM BAN /£SO
PIC-TEC-GRR-WVO-J00-18803-B TO PIC-TEC-GRR-WVO-J00-18808-B
PROJECTCVAN: HANOIPILOTLIGHT METRO LINE Sedion Nhon•HantiRailway S1atial
TIJY£NflOONG sAT00THITHIfll~M TPHANQI Elatn N~n · Ga Hi NOi
Tm.ETtNBANVE: NHUE RIVER CROSSING
VU'QT SONG NHUI;:
Thil <Rwi'ID mUll:notbe eithlrlOlrled,<q>ied«otl'lll'Wile NP'Odiacl
ln wtdeah P11rtorul8dfor•nr prupmewllhoul:.. prlor'Mltsl
parmlllllonot HRB.
DECK- SA5'-SB5' - REINF -1/2
BAN W,TcAU. SA5'-SB5'-c0TTHt:.P. 1/ 2
......My_..,.,._.......ng ..... ""'"""-"""iHn'-Y
.... ~ ... - .........~t~,,.. ...... HRB.
DRAl'l1NGNO. BANV£SO:
PIC-TEC-GRR-WVO-J04-18528-B 38
Boe Type No fNb~·, Total Shape Bend Boe Type No." 1~fNbo;'.~Total IL ~h~hapeIBend Boe Type No. lifN~;, Total Shape Bend
mark ;od of
"'"h No Length Code Type Dimensio~s Shape R"' mark ;od of inmh No eng Code Type Dimensions Shope R"' mar< ;od of ioeach No Length Code Type Dimensions Shape R"'
"" momb mmb size m.mb momb size memb m•mb
" " '' " " " '' " " " " "
002
"' I 146 146 3550 00 A=l550
= OIB rn2 I 2 2 1050
" 2 A=lOO B=l50
IQ 001 DB I B B 1140
" 2 A=IDl 6=l51 [=l15
IF
oo; 014 I 40 40 3650 DD Ad6•8
= on rn2 I 2 2 1180 99 2 A=l00B=l9l
IQ °" CB I 8 8 1160 99 2 A=86 B=ll1 (=140 D=l1S
n001 Dl6 I 58 58 3750 DD Ad149
= °" Dl8 I 40 40 3280 15 I A=14% B=llll (=iD1
~ °" 016 I 12 12 1340 51 2 A=160 8=160 [=1J
g
000 Dl4 I 20 20 5645 25 I AoOOlBo60J[o5750oSJSEo4451-•50J~ m 016 I 20 20
HEAN
6270 15 I Aol134Boil[oJ1J4
~ °" 016 I
' ' 1100 21 2 Ao490 BolOJ [o48l
4=F
'°' Dl4 I 20 20 5590 25 I A=60lB=60lt=515D=515E=4l88-,4469~ m 016 f 20 20 3710 DD A=l709
=HEAN
'°" DID I 40 40 1510 15 I A=l14 8=140 C=m-6
~ rn 012 I 40 40 3850 15 I A=1011B=S05[=11!1
~
009 DB I 12 12 1280 89 2 Aol99-•149 So351 [ol15
IF m 012 I 40 40 2050 89 I Ao5l0Bol49[ol4l4
IJdHEAN 11M1•11:Mo•
'Off om I 40 40 5115 99 2 A=lilB=1090-•1103l=l81D=1088-•1155E=19lF=I~ °'' rn2 I 40 40 1350 15 I A=69J B=m (=OJJ
~HEAN ..1=1ll"o.2=11"o.3=108°o.4=11"o.5=1ll0
' cl=SIO
°" DB I 100 100 530 99 I A=l19 B=lOD
6 m DID I 40 40 1350 13 I A=1l15 r==
or; Dl2 I
' 4 1110 89 2 AolO~ Bo17~
IQ 000 08 I 4 4 1130 99 2 Ao98 BoJ51 [ol15
IF
ko•CA[)o-OTP- '""""°•-OTP- A.-ooCA[)o-011'-
c c
Total Lengths and Weights
Number of members I
Type T Type R BENDING DIAMETERS Imm]
-
Diameters
' ' ID 12 ff fB
" '° 22 25 28 32 lB OD Lengths of standard hooks Imm)Tot~l Weight Total Total Weight Total
Hoo•sDiameter Length per unit Weight Length per unit Weight lB OB 00 22
" %
'"° 120 m
''° "' 25' 288 m,,, (kg/ml (kg) ,,, lkg/m) [kg] 0
IType11 lo,.motors I o I e I 10 I 12 I 14 I 10 I 18 I 10 I 21 I 2s I 28 I i2 I 36 I 40
- F"mes
" 22 OD OB 5B
" '"° 120 m 190
"' 25'
'°" m6 D 0.222 0.00 IType21
-
Hoo•• 0 0 0 0 0 0 0 0 0 0 0 0 0 0 1~~;:~·B 91 0395 36.06 IType11
" %
'" '" '" m ,,. m
"' '°° m
'"' rn
'"°- B 0
ID 114 0617 70.58 Fromes 0 D D 0 0 0 0 0 0 0 0 0 D D
@_
Frame.
" %
'" '" '" "'
,,. >OD
"' '°° m
'" rn
'"°- ITvoe 2) ITypell
12 811 O.B8B 725.67
1~~;:~· 0 0 0 0 0 0 0 0 0 0 0 0 0 0-
14 rn 1210 448.55 B
- Frames 0 0 0 0 0 0 0 0 0 0 0 0 0 0
16 438 1.580 691.38 iT'"•ll
-
BAR DIMENSIONS18 336 2000 67160
-
D DOD 1~~;:~·20 2 470 - THE DIMENSIONS ARE GIVEN ON THE OUTSIDE FIBER OF THE REBAR (SEE BELOW) lB
" 00
" " " '°' "° m
'"
,., m ,,.
''°-
ff
0
22 D 2 980 BOD -THE TOTAL LENGTHS ARE CALCULATED ON THE BASIS OF THE CENTERLINE Frames lB
" 00
" " " '°" "° m
'" '" m ,,.
''°- ITypell
25 D 3 850 DDD [ISO 3766:2004 - METHOD Bl
-
- THE BENDING ANGLES ARE GIVEN IN DEGREES - 1~~;:~· 0 0 0 0 0 0 0 0 0 0 0 0 0 0
2B D 4 830 DDD B
- Frames 0 0 0 0 0 0 0 0 0 0 0 0 0 0
32 D 6.310 0.00
rl____1
'
iT'"•ll
-
36 D 7 990 0.00 ,,-
40 D 9.860 0.00 l'nchorage ;; ;; ;; ;; ;; ;;
" DO
" '" "' '" '" ,00
-
;t- 0
1Type1)
~j
Frames ;; ;; ;; ;; ;; ;;
" DO
" '" "' '" '" '"ITvpell
Type T Type R '-- l'nchorage 0 0 0 0 0 0 0 0 0 0 0 0 0 01Type11
Total Length - Bended:
B
Frames1211 0 0 0 0 0 0 0 0 0 0 0 0 0 0ITvnell
Total Length - St-raight 95'
"Total Length lml 2167
Toto! Weight - Bended 1546
~
Total Weight - Straight 1098
Total Weight (kgl: 2644
,,
Mean Size Imm] GENERAL WEIGHT Kg
)/I
14 I
I I
2644
I
'"""Ml•DTP
•~.O.D• -OTP-
"'"'"'"-011'-
•
CLIENT:
11
PROJECT IMPLEMENTATION CONSULTANT FILE NAMEITtN BAN v£ : SCALEITYLe: STATUS TfNHTR6NG: PROJECTIDIJAN : HANOI PILOT LIGHT METRO LINE Sedian Nhon •Hanci RailwayStation
• a-io E>Au ru: nrvAN THl,fC Hli;:N DI/ AN PIC-TEC-GRR-ll'No.ID4-1852IHl_llADWG - Technical Design
Tuv£N SOONG sAT E>0 THI THI -E>li:M TP HA N()I Elofn N~n ·Ga Hil NOi
• SYSTRAS.A
u "' 12/0D'12 Upo..d A.K 3.Maurls
."'"' HRB
DESIGNED BY THltr K£ : FORMATKHO BAN ve: DATEINGAY: TTTlEITtN BANVE: NHUE RIVER CROSSING
2A
''"""' 2nd aubmllalan ar lectmlcal daalgn A.K ].Meurls
·-'
A.K A1 31/01/10 WQT SONG NHUe
~~ 1C
""'"" """'"' A.K G.Meur1s
·-' CHECKEDBYsoAT: This d'awilg must not be eilhlr IDMed, o:ipi!lcl orOlharwiae rep'Ocluoed DECK - SA5'-SB5' - REINF - BAR LIST - 2 / 2.s ,. ""'"" UPDATE> A.K ~.Maurls P.Amaud HANOI ME'TROPOUTAN RAIL TRANSPORT PROJECT BOARD
G. Maurls In - er h pmrt ar uucl for •nr prupmaWlhoullho prkrwrlllln
•• BAN·~ AN oU'ONo sAroO THI HANQI pennllillon ol HRB. BAN ~T cAU · SA5'·SB5' · COT lHi:_P - DANH MVC THANH - 2 I ~
H 1A 31/01/10 Flllll lssua A.K 3.Maurls
·-'REVISION
""" DESCRIPTION
-· ,,.,.,. (Hl'CflE!QI
PROJECTDIRECTORIGINAeocDIJ AN : CHIEF CESIGNERCll) NHla,lTHl£'TK£ : Mn vii My kh!lng 4JVC ~RI) d,lng - mol h"rlh lh)c, m(ll phln hrly DR.WING NO.IBANVESO :
I3An SO'AElOI '"'y NOi DUNG sCrA.ElOi
"'" ..T ailrtil;llillil~~ Alain B~chereau P.Amaud
kllln ~ mll kh!lng41VC..,Mngf'blngvllnbllncilll HRB.
PIC-TEC-GRR-WVO-J04-18529-B
~
9!
it
i
~ii:
15
ES1 S1 SAB' SA7' SAS'
~T
fl1£U CHINH THANH c0T THEP
FDR PT CONFLICT
=--- EJOI VO'I XUNGEJOTPT ~@
I!!
~
uw .!:
®' @) 10
PARAPET !!~
N
""0
.,..,,
~-9&0
N ..... "'...
®0
~~
";'@,
-.t-
N~
~
x
~
( ~
I (
' (
11
I n--  L--J ....-
t~
%-1 )..- 
N ~
I.I
@> 2x 2-D16 
c::
_ ,,______ ~ -- ~~~
~ - - ~·
DETAILX
CHI Tli;T X
SCALE: 1/10
ITLS: 1110
-8
~~
91&0
N
..N
:---_
8
o""
Ci~
,&
..N
..N
I
( (
~
I
-ll
n
0 9 @
"'"' :e;!i:jii,
0..,.,.
Co 91&0
J.aN 0
....
L___J L___J
9 @
= =_,en -.ten
~~
a@,
6N
- C")
SECTION A-A
MAT CATA-A
SCALE: 1/20
ITLS:1120
o----+----+----------------+----....___....____. Q.IENT:
o----+----+----------------+----....___....____. CHOflAuTU:
3B 12.!05112 Up Dalod A.K
3" 21/11Y11 Upda111d
2A 3004'11 2nd aubml11lon at'lechnlcal dMlgn
A.K
HRBA.K
1C ~8110 A.K
n
®
..,g
Co
·-<;:&
..
~
N
CiI
N
"'....
•
SA9 S3 SB9
KEY PLAN
Kl: HOACH CHfNH
SCA(.E : 1/200
ITLS:1120D
PROJECT IMPLEMENTATION CONSULTANT
TU VAN lHl,IC HleN DI,/ AN
SYSTRAS.A
F % Upda111d
!I $i
18 2MIBl10 UPDATED
!;l 8
A . K HANOI METROPOLITAN RAIL TRANSPORT PROJECT BOARD
t----+---+----------------4-A-.K---4----+-----l BAN DI/AN llWNG IA.TllOTHI llANQI
u 1A 31m1110
REVISION DATE
B SLrAOOI Nal.Y
Flr"111a»
DESCRIPTION
NQI DUNGWAfJOI
IHIHl!BI'
HIM!
CllllClllBI'
IOI.!
PROJECTDIRECTOR IGIAMaocDI/AN:
Alain B~cheraau
n
@
""CDo
Co
·-<;:A
..
REBAR ADJUSTMENT
E1£U CHINH THANH c0,EP
FOR PT CONFLICT
EJOI VO'I XUNG E>0T PT
FILE NAA1ElTtNBAN/£:
DESIGNED BYTH1£TK£ :
A. K
CHECKED BYSlll.T:
G. Maur1s
CHIEF ~IGNERCll) NHleMlll1£rK£:
P. Amaud
SA6 SA5
SB5
SM
SB4SB6 9
@ @)032 033
~~
gf g[91&...;!
,----.,.  I I     I 11   I    
---;; 
,1 2x20- 012
@-J ~ ,__ @.1150
DETAILX )
CHI TIETX
. M 0- 018 @/[cil150
BLISTER TYPE 3
ODO
/ ROL.Wll 3
- 1---- - J V REINFORCEMENT SEE DWG.
1.- 1---- COT THEP XEM BAN ve
~ L---
- - 1---- - lU~
PIC-TEC-GRR-WVO.J04-18654-B
L---
- L--- L---
-1-
~1
L--- 1-
1- 1----
'-- - PIC-TEC-GRR-WVO.J04-18655-B~ I- - '--:: -L--- - -~
i;;.
_... ~ - -~ I-<
014
S L.___)
0 14
~ L___J.. DB
nCi
~~
~- SECTION 8-B
MATCATB-B
SCALEITYLE:
FORMATKHO BAN VE:
A1
STAlUS TfNH~G :
Teclmical Design
DATEINGAY:
31/01/10
Thil <Rwi'ID mUll:notbe eithlrlOlrled,<q>ied«otl'lll'Wile NP'Odiacl
ln wtdeah P11rtorul8dfor•nr prupmewllhoul:.. prlor'Mltsl
parmlllllonot HRB.
......My_..,.,._.....,ng.......,......_m(llpMnt.y
.... ~ ... - .........~t~,,.,, ...cOo HRB.
SCALE: 1/20
IT LS:1/20
NOTES: ~~~~~~~~~~~~~~~~~~~~~~
GHI CHL.f:
1. REINFORCEMENT YIELD STRENGTH: FY=420 MPA.
1. ClldNG E0 CHAY CllA cx:fTTHE'.P :fy--420 Mpa
2. CONCRETE COVER: C=50 MM.
2. Ld P BE TONG e.<ovEc=5D mm
3. FOR PARAPET S"fARTER BARS REFER TO DWG. NO.
3. EJE XEM THANH COT THe!P CHO'COA LAN CAN XJN XEM BAN VE SO
PIC-TEC-GRR-WVO-J00-18803-B TO PIC-TEC-GRR-WVO.J00-18808-B
PROJECTIDVAN: HANOI PILOTLIGHT METRO LINE Sedian Nhon•HantiRailway S1atial
TllY£NflOONG sATElOllilTHIfll~M TPHANQI ElatnN~n · Ga Hi NOi
Tm.ETtNBANVE: NHUE RIVER CROSSING
VU'QT SONG NHUI;:
DECK- SA5-SB5 - REINF -1/2
BAN ~T cAU - SA5-SB5 ·COT THr:P - 1 / 2
DRAl'l1NGNO. BANV£SO:
PIC-TEC-GRR-WVO-J04-18532-B 38
Boe Type No fNb~·, Total Shape Bend Boe Type No." 1~fNbo;'.~Total IL ~h~hapeIBend Boe Type No. lifN~;, Total Shape Bend
mark ;od of
"'"h No Length Code Type Dimensio~s Shape R"' mark ;od of inmh No eng Code Type Dimensions Shope R"' mar< ;od of ioeach No Length Code Type Dimensions Shape R"'
"" momb mmb size m.mb momb size memb m•mb
" " '' " " " '' " " " " "
002
"' I 146 146 3550 00 A=l550
= OIB rn2 I 2 2 1050
" 2 A=lOO B=l50
IQ 001 DB I B B 1140
" 2 A=IDl 6=l51 [=l15
IF
oo; 014 I 40 40 3650 DD Ad6•8
= on rn2 I 2 2 1180 99 2 A=l00B=l9l
IQ °" CB I 8 8 1160 99 2 A=86 B=ll1 (=140 D=l1S
n001 Dl6 I 58 58 3750 DD Ad149
= °" Dl8 I 40 40 3280 15 I A=14% B=llll (=iD1
~ °" 016 I 12 12 1340 51 2 A=160 8=160 [=1J
g
000 Dl4 I 20 20 5645 25 I AoOOlBo60J[o5750oSJSEo4451-•50J~ m 016 I 20 20
HEAN
6270 15 I Aol134Boil[oJ1J4
~ °" 016 I
' ' 1100 21 2 Ao490 BolOJ [o48l
4=F
'°' Dl4 I 20 20 5590 25 I A=60lB=60lt=515D=515E=4l88-,4469~ m 016 f 20 20 3710 DD A=l709
=HEAN
'°" DID I 40 40 1510 15 I A=l14 8=140 C=m-6
~ rn 012 I 40 40 3850 15 I A=1011B=S05[=11!1
~
009 DB I 12 12 1280 89 2 Aol99-•149 So351 [ol15
IF m 012 I 40 40 2050 89 I Ao5l0Bol49[ol4l4
IJdHEAN 11M1•11:Mo•
'Off om I 40 40 5115 99 2 A=lilB=1090-•1103l=l81D=1088-•1155E=19lF=I~ °'' rn2 I 40 40 1350 15 I A=69J B=m (=OJJ
~HEAN ..1=1ll"o.2=11"o.3=108°o.4=11"o.5=1ll0
' cl=SIO
°" DB I 100 100 530 99 I A=l19 B=lOD
6 m DID I 40 40 1350 13 I A=1l15 r==
or; Dl2 I
' 4 1110 89 2 AolO~ Bo17~
IQ 000 08 I 4 4 1130 99 2 Ao98 BoJ51 [ol15
IF
ko•CA[)o-OTP- '""""°•-OTP- A.-ooCA[)o-011'-
c c
Total Lengths and Weights
Number of members I
Type T Type R BENDING DIAMETERS Imm]
-
Diameters
' ' ID 12 ff fB
" '° 22 25 28 32 lB OD Lengths of standard hooks Imm)Tot~l Weight Total Total Weight Total
Hoo•sDiameter Length per unit Weight Length per unit Weight lB OB 00 22
" %
'"° 120 m
''° "' 25' 288 m,,, (kg/ml (kg) ,,, lkg/m) [kg] 0
IType11 lo,.motors I o I e I 10 I 12 I 14 I 10 I 18 I 10 I 21 I 2s I 28 I i2 I 36 I 40
- F"mes
" 22 OD OB 5B
" '"° 120 m 190
"' 25'
'°" m6 D 0.222 0.00 IType21
-
Hoo•• 0 0 0 0 0 0 0 0 0 0 0 0 0 0 1~~;:~·B 91 0395 36.06 IType11
" %
'" '" '" m ,,. m
"' '°° m
'"' rn
'"°- B 0
ID 114 0617 70.58 Fromes 0 D D 0 0 0 0 0 0 0 0 0 D D
@_
Frame.
" %
'" '" '" "'
,,. >OD
"' '°° m
'" rn
'"°- ITvoe 2) ITypell
12 811 O.B8B 725.67
1~~;:~· 0 0 0 0 0 0 0 0 0 0 0 0 0 0-
14 rn 1210 448.55 B
- Frames 0 0 0 0 0 0 0 0 0 0 0 0 0 0
16 438 1.580 691.38 iT'"•ll
-
BAR DIMENSIONS18 336 2000 67160
-
D DOD 1~~;:~·20 2 470 - THE DIMENSIONS ARE GIVEN ON THE OUTSIDE FIBER OF THE REBAR (SEE BELOW) lB
" 00
" " " '°' "° m
'"
,., m ,,.
''°-
ff
0
22 D 2 980 BOD -THE TOTAL LENGTHS ARE CALCULATED ON THE BASIS OF THE CENTERLINE Frames lB
" 00
" " " '°" "° m
'" '" m ,,.
''°- ITypell
25 D 3 850 DDD [ISO 3766:2004 - METHOD Bl
-
- THE BENDING ANGLES ARE GIVEN IN DEGREES - 1~~;:~· 0 0 0 0 0 0 0 0 0 0 0 0 0 0
2B D 4 830 DDD B
- Frames 0 0 0 0 0 0 0 0 0 0 0 0 0 0
32 D 6.310 0.00
rl____1
'
iT'"•ll
-
36 D 7 990 0.00 ,,-
40 D 9.860 0.00 l'nchorage ;; ;; ;; ;; ;; ;;
" DO
" '" "' '" '" ,00
-
;t- 0
1Type1)
~j
Frames ;; ;; ;; ;; ;; ;;
" DO
" '" "' '" '" '"ITvpell
Type T Type R '-- l'nchorage 0 0 0 0 0 0 0 0 0 0 0 0 0 01Type11
Total Length - Bended:
B
Frames1211 0 0 0 0 0 0 0 0 0 0 0 0 0 0ITvnell
Total Length - St-raight 95'
"Total Length lml 2167
Toto! Weight - Bended 1546
~
Total Weight - Straight 1098
Total Weight (kgl: 2644
,,
Mean Size Imm] GENERAL WEIGHT Kg
)/I
14 I
I I
2644
I
'"""Ml•DTP
•~.O.D• -OTP-
"'"'"'"-011'-
•
CLIENT:
11
PROJECT IMPLEMENTATION CONSULTANT FILE NAMEITtN BAN v£ : SCALEITYLe: STATUS TfNHTR6NG: PROJECTIDIJAN : HANOI PILOT LIGHT METRO LINE Sedian Nhon •Hanci RailwayStation
• a-io E>Au ru: nrvAN THl,fC Hli;:N DI/ AN PIC-TEC-GRR-ll'No.ID4-1853:Hl_llADWG - Technical Design
Tuv£N SOONG sAT E>0 THI THI -E>li:M TP HA N()I Elofn N~n ·Ga Hil NOi
• SYSTRAS.A
u "' 12/0D'12 Upo..d A.K 3.Maurls
."'"' HRB
DESIGNED BY THltr K£ : FORMATKHO BAN ve: DATEINGAY: TTTlEITtN BANVE: NHUE RIVER CROSSING
2A
''"""' 2nd aubmllalan ar lectmlcal daalgn A.K ].Meurls
·-'
A.K A1 31/01/10 WQT SONG NHUe
~~ 1C
""'"" """'"' A.K G.Meur1s
·-' CHECKEDBYsoAT: This d'awilg must not be eilhlr IDMed, o:ipi!lcl orOlharwiae rep'Ocluoed DECK - SA5-SB5 - REINF - BAR LIST - 212.s ,. ""'"" UPDATE> A.K ~.Maurls P.Amaud HANOI ME'TROPOUTAN RAIL TRANSPORT PROJECT BOARD
G. Maurls In - er h pmrt ar uucl for •nr prupmaWlhoullho prkrwrlllln
•• BAN·~ AN oU'ONo sAroO THI HANQI pennllillon ol HRB. BAN ~T cAU · SA5-SB5 · COT lHi:_P - DANH MVC THANH · 21
H 1A 31/01/10 Flllll lssua A.K 3.Maurls
·-'REVISION
"'"
DESCRIPTION
-· ,,.,.,. (Hl'CflE!QI
PROJECTDIRECTORIGINAeocDIJ AN : CHIEF CESIGNERCll) NHla,lTHl£'TK£ : Mn vii My kh!lng 4JVC ~RI) d,lng - mol h"rlh lh)c, m(ll phln hrly DR.WING NO.IBANVESO :
I3An SO'AElOI '"'y NOi DUNG sCrA.ElOI
"'" ..T ailrtil;Mllil~~ Alain B~chereau P.Amaud
kllln ~ mll kh!lng41VC..,Mngf'blngvllnbllncilll HRB.
PIC-TEC-GRR-WVO-J04-18533-B
~
~
i
I!!
~
t ui w .!:
F %
!I $i
!;l 8
~ uii: B
15
ES1 S1 SAS' SA7' SA6'
------- ~
RifiAR ~DJUSTM EN T
f>I U CH NH THANH COT THi;P
F ~R p6 CONFLIOT
=----- f> IV IXUNGE TPT
®' -@ l@ @ ~
n @)@J 9PARAPET
S!~ NO ..,o
~~N Ci~ c~
!!o 9A ,e. ,e. 9&Cl
.,, .,,
J.&N N N 0
" .. N
N N
@J ~ L___J
9 L___J
08 =
= ~~
..j '"'
~~
--s 5@,
~ N
I
,1
$@)
SECTION A-A
'
l
t ffi1
~ ~@ 2x2- 016
c:::::::
®0
"' ~- <-
'7 @,
. . j -
N~
N
x
~
-)--
"'
~
l I L...---' -II I
"'
DETAILX
CHI Tli;T X
SCALE: 1/10
Ti'LS: 1110
I
'
~
o----+----+----------------+----....___....____. Q.IENT:
o----+----+----------------+----....___....____. CHOflAu ru:
3" 21/11Y11 Upda111d A. K
2A 3004'11 2nd aubml11lon at'lechnlcal dMlgn A . K
1C ~8110
MAT CATA-A
SCALE: 1/20
Ti'LS:1120
HRB
n
9
~g
·-s•
I I
co
o=
' 0
""""x -
-"@,
0
n
•
SA9 S3 SB9
KEY PLAN
Ki; HOACH CHfNH
SCALE : 11200
TYLS:1/200
PROJECT IMPLEMENTATION CONSULTANT
11 VAN THl,IC HleN DI,/ AN
SYSTRAS.A
18 2Ml&'IO
Upda111d A. K
UPDATED A. K HANOI METROPOLITAN RAIL TRANSPORT PROJECT BOARD
1----+--+-F-lm- -..--------------+,.-.K---4---4------1 BAN DI/AN llWNG IA.TllOTHI llANQI1A 31m1110
REVISION DATE
SLrAOOI Nal.Y
DESCRIPTION
NQI DUNGWAfJOI
IHIHl!BI'
HIM!
CllllClllBI'
IOI.!
PROJECTDIRECTORIGIAMaocDI/AN:
Alain B~cheraau
n
0
!5
·-c;:a.
FILE NAA1ElTtN e,1,1/£:
DESIGNED BYTH1£TK£ :
A. K
CHECKED BYSlll.T:
G. Maur1s
CHIEFDESIGNERCll) NHleMTH1£rK£:
P. Amaud
SA7' - - -
SB7'@
SAS'
586'
(@) @
E;I E;j
SA5'
SB5'
             I I I ,  , _ , ~ ,~
H--*---+---11-----ll-----ll--+l--l+--++-*--*---+-~·---++------41--+l--l+--++--41--11-+--'D~1~6 <iiJ§
SCALEITYLE:
FORMATKHO BAN VE:
A1
--.
STAlUS TfNH~G :
Teclmical Design
DATEINGAY:
31/01/10
Thil <Rwi'IDmUll:notbe eithlrlOlrled,<q>ied«otl'lll'Wile NP'Odiacl
ln wtdea h P11rt orul8dfor•nr prupme wllhoul:.. prlor'Mltsl
parmlllllonot HRB.
......My_..,.,._.......ng ..... ""'"""-"""oHn'-Y
....~ ...- .........~t~ '"""'" ""' """·
.m 014
9 L___J
01 4
~
'-------'
08
nSECTION B-B
MAT CAT 8-8
°tCALE : 1120
TYLl~:1/20
NOTES: ~~~~~~~~~~~~~~~~~~~~~~
GHI CHL.f:
1. REINFORCEMENT YIELD STRENGTH: FY=420 MPA.
1. ClldNG E0 CHAY CllA cx:fTT HE'.P :fy"-420 Mpa
2. CONCRETE COVER: C=50 MM.
2. Ld P ei; TONG M Dv£c=50 mm
3. FOR PARAPET S"fARTER BARS REFER TO DWG. NO.
3. EE. XEM THANH COT THeP CHO' COA LAN CAN XJN XEM BAN veso
PIC-TEC-GRR-WVO-J00-18803-B TO PIC-TEC-GRR-WVQ..J00-18808-B
PROJECTIDVAN: HANOIPILOTLIGHT METRO LINE Sedian Nhon•HantiRailwayS1atial
TIJY£N flOONG sAr ElOTHITHIfll~M TP HANQI Elatn N~n · Ga Hi NOi
Tm.E TtNB,1,1~ : NHUE RIVER CROSSING
VU'QT SONG NHUI;:
DECK- SA6'-SB6' - REINF -1/2
BAN W,TcAU . SA6'-SB6'-c0T THIO.P • 1/ 2
DRAl'l1NGNO.IBANV£SO:
PIC-TEC-GRR-WVO-J04-18536-B 3A
"" T1pe No. fNbo,", Totalll th hape Bend
I
"" Type No.l01Nb
0
;, Total h•pe Bend
I
"" Type No.l:fNbo;, To~;il hope Bend
mark ood of "'"h No eng [ode Type Dimensi~ns Shape R" mork ood of inmh No Length Code Type Dimenoions Shape R" mork ood of in,.,h No Length Code Type Dimensions Shape R
''" momb memb
"" memb momb size momb memb
" " '' " " " '' " " " " "
002
"' ' 142 142 3550 00 A=lS>O
= °'9 m2
' 4 4
""
,, 2 A=IJO B=l50
IQ 000
°" ' 4 4 1130 ,, 2 A=1B B=351 [=JZS
noo;
°'' ' '° '° 3650 00 Ad645
= "' m2
' 2 2 990 99 2 A=ISI B=lli
IQ 000 OS
' s s 1140 99 2 A=101 BdSI [=llS
n
°"' m6
' 9S 9S 3750 00 Ad149
= on m2
' 2 2 1040 99 2 A=l9l B=lll
IQ "" OS
' s s 1160 99 2 A=!O BdSI [=140 Dd15
n006
°'' ' 20 20 5665 25
' A=&OlB=O~J[=515D=515E=45ll-••SOJ~ m ow
' '° '° 3280 15
' A=14iO B=1l11 [=107
~ °" m6
' " " 1340 51 2 A=100B=100[=14J
gMEAN
·~ ~··~ ~·
'°' °'' ' 20 20 5660 25
' A=&OlB=O~J[=515D=SJSE=440j-•45ll~ m m6
' 20 20 6270 15
' A=l1l4 B=Ol C=lll4
~ m m6
' 4 4 1100
" 2 A=490B=20J[=41J
IbdIMEAN
·~ ·~ ~· ~·
'°" om
' '° 40 1510 15
' A=l7l B=145 C=1l49
~ m °'6
' 20 20 3710 00 A=l709
=009 OS
' " " 11BO 99 2 A=9i-•149 B=351 [=l15
n rn °'2
' 40 40 3850 15
' A=1171 B=565 [=1781
~MEAN
·~ ·~ ~· ~· '
°'' °'6
' 40 40 4765 99 2
'
m °'2
' 40 40 2050 99
' A=SlO B=14i C=14l4
ridMEAN al=91'a1=90°
·~ ·~ ~· ~·
A=l41 8=1925-·2029 (=1% D=1n6-·20JO E=19J F=l41 m °'2
' 40 40 1350 15 D A=69J B=l97 (=Oll
~a1=1JS'a1=11"al=1DB'a4=11"a5=1JS' cl=550
°" OS
' 100 100 9JD 99
' A=l29 B=lO~
6 m °'"
' 40 40 1350 13
' A=l115
E::::=
''"'""'-"'- ""'"""-011'- ''"'""'-"'-
Total Lengths and WeiqhJ-s
Number of members
'
Type T Type R BENDING DIAMETERS Imm)
- Lengths of standard hooks (mm)
Total Weight Total Total Weight Total Di;imeters 6 s m
" " " " 20 22 25 28
Diameter Length per unit Weight Length per unit Weight Hooks Diameters I 6 s w
" " '6
" 20 22 29
1,1 (kg/ml (kgl 1~1 Ikg/ml [kg) !Type 11 J6 48 60 12 84 96 ms '20 m '90 224
- 0
6 D 0.222 0.00 Frames
24 J2 40 48 96 64 ms '20 m '90 224-
!Type 21
s
'° 0395 35 58 l'l~~~rear1esl 72 96 '20 '44 '6S
"' 2'6 240 264 JOO- Hooks
0 0 D D D D D D D 0 Dw n4 0.617 70.58 !Type 1]
@_
0
- R Frames I 0 0 D 0 D 0 D D 0 D
" SD2 O.BBB 71221 Frames
D D D D D D D D D D D
(Type 21
- (Type 2]
" 313 1210 451.21 l'll~~~reart'I 72 96
''° '44 '6S '92 2'6 240 264 JOO-
'6 628 1.580 992.52 R
-
BAR DIMENSIONS Frames I D 0 D D 0 D 0 D 0 0
" rn 2000 262 40 ITvpe 21
-
20 D 2 470 DDD - THE DIMENSIONS ARE GIVEN ON THE OUTSIDE FIBER OF THE REBAR (SEE BELOW)-
D 2 980 DDD22 -THE TOTAL LENGTHS ARE CALCULATED ON THE BASIS OF THE CENTERLINE
l'l~~~rear1esl 36
-
[ISO 3766·2004 - METHOD Bl 48 60 12 84 96 ms '20 m '9025 D 3 850 000
-
- THE BENDING ANGLES ARE GIVEN IN DEGREES
<L
D
28 D 4 830 000 Frames I 0 0 D 0 D D D D 0 D- (Type 21
J2 D 6.310 000
q, ' 111
l~~~reart'I 36
-
7 990 48 60 12 84 96 ms
''° m '90J6 D 0.00 ,,- R
40 D 9.860 0.00 Frames I D D D D D D 0 D 0 0- ITv~e 21
~ '
Type T Type R
Total Length - Bended: 1197
;tr
l'l~~~rear1esl 65 65 65 65 65 65 12 SD 88 'DO
Total Length - St-raight
0
Frames I 0%2
" 0 D 0 D 0 D D 0 D
Total Length [ml 2139
(Type 21
Total Weight - Bended 1441
~ '---- 111
l~~~reart'I 65 65 65 65 65 65 12 SD 88 mo
R
Total Weight - Straight 10B6 Frames I D D D D D D 0 D 0 0
Total Weight [kg): 2525
'
•; ITv~e 21
Me;m Size Imm) GENERAL WEIGHT kg
v!I
BS
I I
2525
I
""'"'"'" '""""'"•-DTP- '"""""'-DTP-
~
' CLIENT:
II
PROJECT IMPLEMENTATION CONSULTANT FILE NMIE ITtN BAN'£: : sr.ALEIrtL(: : STATUSTlNHT~: PRO.ECT IDl/#.! : HANOI PILOT LIGHT METRO LINE Sectkln NOOn - HlllOI Ralway station
~ I CHOEl.Wnr: Tl/ VAA THVC Hll;N DIJ AN PIC-TEC-ORR-WVQ.JIM-1M37-8_2".DWa - Technical Design
TU1N WONG sATBO rn1 rnlDlt::M TP HA NOi E>olil1 Nh&i- Ge Hill NOi
~ ~ ~ SYSTRAS.A
DESIGNED BY ITlll£'rKE: : FORtMTIKHO eANv£ : DATEINGAY: Tm.EIrt:N BAN v£ :
~ HRB NHUE RIVER CROSSING
'~ A.K A1 31/01110 lll1QT SONG NHUo7
~§ "' "'"'11 2nd submission of lechnlcaldes91 H 3.Maurls
·"""'""
!!s 1C ....10 UM•'"' H IG. Maurta
·"""'"" CIECKED BYsoAT: Thlad-ngrnJlllnolba-IDal-.d,coplacl<r-rapmcilcad DECK - SA6'-SB6' - REINF - BAR LIST - 2 / 2HANOI METROPOUTAN RAIL TRANSPORT PROJECT BOARD
q 1B ,...,, UPDATE>
~·
jG. Mauria
"·"""'"" G. Mauris i1 whole ar in part <rused far any prl4)Ca wihoU; lh8 priorwrillBn
BAN ~T cAU - SA6'.SB6' -COT TH~P- DANH MVC n<ANH - 2 Ii
~ 1A 31/01/10 Fi181 l8al8
~·
3.Mauria
·"""'"" BAN OiiAN DUONG sAT00 Tiii HA N()I permissiondHRB.
! •
""'"" -· PROJECT DIRECTORIGIAMe0c IX/AN : CHIEFDESIGNERIa-io tt11eM Tii1£T KE: : Bin ve nQ' khOng auqc ph6par. d1o11g dllCImQI hlrll tll)c, ml)I phln hay DRA'MNG NO. IBAN v£ SO :
I2A~ B
REVISION OAJE DESCRIPTION ClilEFOFDl!O IDAn bl), mil khOng o!uqc •II' .Dig~ ~IAln bin all. HRB.
PIC-TEC-GRR-WVO-J04-18537-B
"''"' "" NQI DUNG SO'A 001 THl~ICE
"" Cl(JNIGlllETE Alain Bllchereau P.Amaud
~
~
it
i
~ii:
15
ES1 S1 SAB' SA7' SAS'
------REBAR ADJUSTMENT
£Heu CHINH THANH COT THeP
FOR PT CONFLICT
=--- E01 VO'I XUNG EQT PT ~ n
I!!
~
uw .!:
F %
!I $i
!;l 8
uB
PARAPET .....,,,
STARTER BARS ~i.
THANH COT THe!P NHO RA ';:l
2x20-D12
aii1s
1~
___ fo04 2x29-D16
~ @1150
®0
~~
'7@,
..s -
N '1
N
~
-
( ( (
I
1 1::::1'.1 T
~I t
..._... -
t [j ~ --
t N w '.I
§ 2x2- D16
c::
-- - ·- '-------- - '-----+;y'----- - - ·
DETAILX
CHITl~TX
SCALE: 1/10
T'f'LI;: 1/10
8......,,
~·.......N
I
CY I
I I H
I
I
_Li
0 n @)9
"" ~~
....,,
~g
~- l:]IA0
·-N ..... C>
N
$SECTION A-A
MAT CATA-A
SCALE: 1/20
TY L1~:1/20
o----+----+----------------+----+---+----< Q.IENT:
CHOflAu 11:
o----+----+----------------+----+---+----<
3" 21/11Y11
2A 3004'11 HRBUpda111d A. K
2nd aubml11lon at'lechnlcal dMlgn A . K
@
00 ..
cg,_
c;::•
....
1C ~8110
18 2Ml&'IO
Upda111d A. K
1--=--i;:;=-"--+-"u"'PD,t;=JED;...__ _ _ _ _ _ _ _ _ _ _ _"-,."".K"----==- .;..;..:;;=---1 HANOI METROPOLITAN RAIL TRANSPORT PROJECT BOARD
1A 31m1110
REVISION DATE
SLrAOOI Nal.Y
F1m -. " ·K BAN DI/AN ellONG sA.TEO THI HA NQI
DESCRIPTION
NQI DUNGW AfJOI
IHIHl!BI
HIM!
CllllClllBI
IOI.!
•
SA9 S3 SB9
KEY PLAN
K~ HO~CH CHfNH
SCALE: 1/200
TYLS:1/200
PROJECT IMPLEMENTATION CONSULTANT
11 VAN THl,IC HleNDI,/ AN
SYSTRAS.A
PROJECTDIRECTORGIAMaocDI/AN:
Alain B~cheraau
FILE NAA1ElTtNBAN/£:
DESIGNED BY TH1£TK£ :
A. K
CHECKED BYSlll.T:
G. Maur1s
CHIEF~IGNERCll) NHleMTH1£rK£:
P. Amaud
SA7
SB7 9
~~
';'Ci
...t:
,1
/
(
ETAIL X )D
CH1nei-x
DD
~
D ~1
N
Ci
SCALE TYLE:
FORMATKHO BAN VE:
A1

'
~
    
-- --,_.---
~ =- ~
SA6
SBS
B5' SB6' SB7' SB6' S ' S2 ES2
SA5
SB5
@) @)032 033
;;f ;;j
    1  i i A-,   ,-
'"'' 2x20 012
@)-J @1150
016@//
BLISTER TYPE 2
>----- >-----
J
I RO LQN 2
->----- I REINFORCEMENT SEE DWG.
-->----- - ~
I COT THeP XEM BAN ve
->----- >----- >-----'I PIC-TEC-GRR-WVO-J04-18660-B
- - - rt->----- -->-----
ft: P- ~I I PIC-TEC-GRR-WV0-.104-18661-Bi-::
- --::::: >-----
= ~-
~-..- 014
s '-----J014
~ '-----JDB
n
SECTION B-8
MAT CAT B-B
SCALE: 1120
TY Ll;:1/2D
N OTES: ~~~~~~~~~~~~~~~~~~~~~~
GHI CHL.f:
1. REINFORCEMENT YIELD STRENGTH: FY=420 MPA.
1. ClldNG E0 CHAY CllA cx:fTTHE'.P :fy---420 Mpa
2. CONCRETE COVER: C=50 MM.
2. Ld P eeTONG e.<ov£c=50 mm
3. FOR PARAPET S"fARTER BARS REFER TO DWG. NO.
3. EE. XEM THANHCOT THe!P CHO' COA LAN CANXJNXEM BAN 111:SO
PIC-TEC-GRR-WVO-J00-18803-B TO PIC-TEC-GRR-WVO-J00-18806-B
STAlUS TfNH~G : PROJECT CVAN: HANOI PILOTLIGHT METRO LINE Sedion Nhon•HantiRailwayS1atial
Teclmical Oesign
DATENGAY:
31/01/10
TIJY£N flOONG sATE0THITHIfll~M TPHA NQI Elatn N~n · Ga Hi NOi
Tm.E TtNBANVE: NHUE RIVER CROSSING
VU'QT SONG NHUI;:
Thil <Rwi'ID mUll:notbe eithlrlOlrled,<q>ied« otl'lll'Wile NP'Odiacl
ln wtdea h P11rtor ul8dfor•nr prupmewllhoul:.. prlor'Mltsl
parmlllllonot HRB.
DECK- SA6-SB6 - REINF -1/2
BAN ~T cAU - SA6-SB6 - COT THi:P - 1 / 2
......My_..,.,._......."11 ..... ..,.. .... _m(llpMnt.y
....~ ...- .........~t~'"""'" ""' """·
DRAl'l1NG NO. BANV£SO:
PIC-TEC-GRR-WVO-J04-18540-B 3A
Boe Type l:Bo To~ol hope Bend
I
Boe Type No 1,fNbo''.~ Total L thlshape Bend
I
Boe Type I Bo Tol<il hope Bend
I
No fbar
Length
No ofbar
Lengthmark
'"" of '""'h Bo [ode Type D1mens1ons Shape
"" mark
'"" of ine"h No eng Code Type D1mens1ons Shape
"" m.rk
'"" of '""'h Bo Code TJpe Dimensions Shape
""Sile ~•mb memb S11e m•mb memb Sile membmemb
"" "" " " " " "" " "" "" " "
'°' 011 1 118 118 3550 00 A=l5SO
= °'" 012 1 1 1 950 99 1 A=llO B=llO
Ikd o" 08 1 8 8 1140 99 1 A=10J BdSI [dl5
n
"°' 016 1 5B 58 3750 00 A=l749
= 011 011 1 1 1 1040 99 1 A=l9l B=llO
Ikd 0<1 08 1 8 8 1160 99 1 A=BO BdSI [=140 Dd15
n006 014 1 10 10 5685 15 1 A=60JB=00J[=515D=575E=45JB-•450l~
°" 018 1 40
HEAN
40 3280 15 1 A=14iO B=1l11 [=IOJ
~ °" 016 1 11 11 1:J40 51 1 A=ZOO B=160 [=143
g~
·~
001 014 1 10 10 5660 25 1 A=60lB=00l[=515D=575E=•469-·45ll~ rn 016 1 10 10 6270 15 1 Adm. B=63 (=lll4
~ m 016 1 4 4 1100 11 1 A=490 B=10J [=48l yMEAN
~
·~
OOB 010 1 40 40 1510 15 1 A=11lB=145(=1l49
~ "" 016 1 10 10 3710 00 Ad109
=
000 08 1 11 11 1180 99 1 A=i9-•149 B=l51 C=l15
n o;; 011 1 40 40 3850 15 1 A=1071 B=50> C=1111
~MEAN
~
·~
'
o" 016 1 40 40 4765 99 1 m 011 1 40 40 2050 99 1 A=llO 8=149 C=14l4 yMEA~ al=91•ah9D'
~
·~
A=147 B=192S-·2019 [=1% 0=1916-·1030 E=19l F=141 m 011 1 40 40 1350 15 0 A=09J B=l91 (=67l
~a1ol35"a1o11"alorni"a4o11"a5oll5" r1o550
on 08 1 100 100 5JO 99 1 Ao1198oJOI
b OJ9 010 1 40 40 1350 13 1 Aol115
E::::=i
01;
°" 1 4 4 990 99 1 A=mB=150
Ikd 040 08 1 4 4 nm 99 1 A=il B=Jll C=l15
n
'"""""•-m- ""'"'•-OTP- '"'''"•-m-
c c
Total Lengths and Weights
Number of members 1
Type T Type R BENDING DIAMETERS Imm)
~
Lengths of standard hooks Imm)
Total Weight Total Total Weight Total Diameters 6 8 10 11 14 16 18 10 11 15 18
Diameter Length per unit Weight Length per unit Weight Hooks Diameters I 6 8 10 12 14 16 18 10 11 25
,,, [kg/ml [kg] ,,, (kg/ml lkg) (Type 1) J6 48 60 11 84 96 108 110 131 150 114
~
0
6 0 0.222 0.00 Frames
14 J1 40 48 56 64 108 110 131 150 114~
!Type 21
8 90 0 395 35.56 ~(~~~re0
f1esl 72 96 120 144 168 192 116 240 164 JOO
~ Hooks
0 0 0 0 0 0 0 0 0 0 010 114 0617 70.56 (Type 1) 0
~ R
@_
Frames I 0 0 0 0 0 0 0 0 0 0
11 9JO 0.888 825.70 Frames
0 0 0 0 0 0 0 0 0 0 0
!Type 2)
~
(Type 2)
14 111 1210 274.55 111
(~~~'e"f1esl 72 96 120 144 168 192 116 240 164 JOO
~
618 1.580 992 52 R16
~
BAR DIMENSIONS Frames I 0 0 0 0 0 0 0 0 0 0
18 1J1 2000 262 40 ITvne 2)
~
10 0 2 47D 000 - THE DIMENSIONS ARE GIVEN ON THE OUTSIDE FIBER OF THE REBAR [SEE BELOW]~
11 0 2 980 000 - THE TOTAL LENGTHS ARE CALCULATED ON THE BASIS OF THE CENTERLINE
fl(~~~re"f1e'I 36
~
0 3 850 0 00 1150 3766:2004 - METHOD Bl 48 60 12 84 96 108 120 131 15015
~
4 830 - THE BENDING ANGLES ARE GIVEN IN DEGREES
~
0
Frames I 028 0 0 00 0 0 0 0 0 0 0 0 0~ !Type 2)
J1 0 6.310 0.00
~
'~
fl(~~~'e"f1e'I 36 48 60 11 84 96 108 120 131 150J6 0 7 990 0.00 ,,~ R
40 0 9.660 0.00 Frames I 0 0 0 0 0 0 0 0 0 0~
ITvoe 2)
~ >
Type T Type R
Total Length - Bended: 1197
;tf-
fl(~~~'e"f1e'I 65 65 65 65 65 65 11 80 88 100
Total Length- Straight.
0
Frames I 0914 0 0 0 0 0 0 0 0 0 0
Total Length [ml 2121
!Type 2)
• '---- fl(~~~'e"f1e'I 65 65 65 65 65 65 11 80 88 100Total Weight - Bended· 1441
R
Total Weight - Straight 1022 Frames I 0 0 0 0 0 0 0 0 0 0
Total Weight [kg): 2461
,, ITvoe 2)
Mean Size Imm) GENERAL WEIGHT kg
';i__I
137
I I
2461
I
"'"'"""'"' ""'''°•-OTP- '"'''°'-OTP-
~
' CLIENT:
II
PROJECT IMPLEMENTATION CONSULTANT FILE NMIEITtN BAN v£ : sr.ALEIrtLe: STATUSTlNHT~: PRO.ECTIDlfAN : HANOI PILOT LIGHT METRO LINE Sectkln NOOn - HlllOI Ralway station
• I CHOEl.Wnr: Tl1 VAA THVC Hll;N DIJAN PIC-TEC-ORR-WVQ.JIM-1BM1-8_2oU!Wa - Technical Design
TU1N WONG sATBO rn1 rnlDlt::M TP HA NOi E>olil1 Nh&i- Ge Hill NOi
~ ~ ~ SYSTRAS.A
DESIGNED BYITlll£'rKE: : FORtMTIKHO eANv£ : DATEINGAY: Tm.EI'Tt:N BANv£ :
~ HRB NHUE RIVER CROSSING
'~ A.K A1 31/01110 lll1QT SONG NHUo7
~§ "' "'"'11 2nd submission of lechnlcal des91 H 3.Maurls
·"""'""
!!s 1C ....10 UM•1"d H IG. Maurts
·"""'"" CIECKED BYsoAT: Thlad-ngrnJlllnolba-IDal-.d,coplaclor-rapmcilcad DECK - SA6-SB6 - REINF - BAR LIST -1 I 2HANOI METROPOUTAN RAIL TRANSPORT PROJECT BOARD
q 1B ,...,, UPDATE>
~·
jG. Maurie
"·"""'"" G. Mauris i1 whole ar in part or used for any prl4)Ca wihoU; lh8 priorwrillBn
BAN ~T cAU - SA6-SB6 -COT TH~P- DANH Ml,IC TI-tANH -1 /
~ 1A 31/01/10 Fi18118a111
~·
3.Mauris
·"""'"" BAN OiiAN DUONG sAT00 1111 HA N()I permissiondHRB.
! •
""'"" -· PROJECT DIRECTORIGIAMe0c IX/AN : CHIEFDESIGNERIa-iott11eM Tii1£T KE: : Bin ve nQ" khOng auqc ph6p ar. d1o11g dllCI mQI hlrll tll)c, ml)I phln hay DRA'MNGNO.IBANv£ SO :
I2A~ B
REVISION
"" DESCRIPTION ClilEFOFDl!O IDAn bl), mil khOng o!uqc •II' .Dig~ ~IAln bin all. HRB.
PIC-TEC-GRR-WVO-J04-18541-B
"''"' "" NQI DUNG SO'A 001 THl~ICE
"" Cl(JNIGlllETE Alain Bllchereau P.Amaud
~
~
it
i
~ii:
15
ES1 S1 SAS' SA7' SA6'
-REBAR ADJUSTMENT
EllEU CH]NH TI-IANH COTTHEP
FOR PT CONFLICT
=-- EIOl~EIOTPT t' n@
I!!
~
uw .!:
F %
!I $i
!;l 8
uB
®'
PARAPET
ee~
-=?&STARTER BARS ..TI-IANH COT THEP NHO RA ';:
(§
N
Ci
2x20-D12
@150
(ojj 0
DETAILX
CHI Tl~TX
SCALE: 1/10
TYLIS: 1110
10 0
~~
'1'•
~~
-TCi..N
..N
0 n @9
'°"' ..
~-
..,g ....,,
Clo 'iii-.. ·- ..N ...... N
C")
SECTION A-A
M~T CAT A-A
SCALE: 1f20
TY LIS:1120
o--~-+-~~-+-~~~~~~~~~~~~~~-+-~~~...._~~...._~~--< Q.IENT:
o--~-+-~~-+-~~~~~~~~~~~~~~-+-~~~...._~~...._~~--< CHOflAuru:
3" 21/11Y11
2A 3004'11 HRBUpda111d A.K
2nd aubml11lon at'lechnlcal dMlgn A . K
1C ~8110
®
!8,_
c;:•
....
...CIO
,.........-......
18 2Ml&'IO
Upda111d A. K
UPDATED A. K HANOI METROPOLITAN RAIL TRANSPORT PROJECT BOARD
1----+---+-F-lm--..--------------+-,.-.K---4---4-------1 BAN DI/AN llWNG sA.rllOTHI llANQI1A 31m1110
REVISION DATE
SLrAOOI Nal.Y
DESCRIPTION
NQI DUNGWA9°'
IHIHl!BI'
HIM!
CllllClllBI'
IOI.!
•
SA9 S3 SB9
KEY PLAN
K~ HO~CH CHfNH
SCALE: 1/200
TYLl;:1/200
Zx20-D16
@1150
PROJECT IMPLEMENTATION CONSULTANT
11 VAN THl,IC HleN DI,/ AN
SYSTRAS.A
PROJECTDIRECTORGIAMaocDI/AN:
Alain B~cheraau
n
9
!g
·-c;:ia.
"*
FILE NAA1ElTtNBAN/£:
DESIGNED BYTH1"1K£:
A. K
CHECKED BYSlll.T:
G. Maur1s
CHIEF~IGNERCll) NHleMlll1£rKe:
P. Amaud
~SAS'
SBS' 0
s:::t~
9i....
"'N
,1
,·1
ETAILX )'[D
CHITIETX
DD
~
D ~1
~
D
SCALETYLE:
FORMATKHO BAN VE:
A1
SAT
SBT
@ @)032 033
~1 ~1
SA6'
SB6'
     
,---.>       ,----,'    ,
r- Ir
2x20- 012
@1150 s-
016®
014
~014
7
014
8
SECTION B-B
MATCATB-B
STAlUS TfNH~G :
Teclinical Oesign
DAlENGAY :
31/01/10
• SCALE : 1f20
TYLIS:1/20
NOTES: ~~~~~~~~~~~~~~~~~~~~~~
GHI CHL.f:
1. REINFORCEMENT YIELD STRENGTH: FY=420 MPA.
1. ClldNG El0 CHAY CllA cx:fTTHE'.P :fy--420 Mpa
2. CONCRETE COVER: C=50 MM.
2. Ld P BE TONG e.<ov£c=50 mm
3. FOR PARAPET S"fARTER BARS REFER TO DWG. NO.
3. eeXEM THANH COT THe!P CHO'COA LAN CAN XJN XEM BAN veso
PIC-TEC-GRR-WVO-J00-18803-B TO PIC-TEC-GRR-WVO-J00-18808-B
PROJECT CVAN: HANOI PILOTLIGHT METRO LINE Sedian Nhon•HantiRailway S1atial
TIJY£NElOONGsATElOTHITHIEllEM1l'HANQI ElatnN~n · Ga Hi NOi
Tm.ETtNBAN1£: NHUE RIVER CROSSING
VU'QT SONG NHUI;:
Thil <Rwi'ID mUll:notbe eithlrlOlrled,<q>ied«otl'lll'Wile NP'Odiacl
ln wtdeah P11rtorul8dfor•nr prupmewllhoul:.. prlor'Mltsl
parmlllllonot HRB.
DECK - SA7'-SB7' - REINF -1 / 2
BAN W,TcAU • SA7'-SB7'-c0TT1-li:_P • 1/ 2
DRAl'l1NGNO.BANV£SO:
PIC-TEC-GRR-WVO-J04-18544-B 3A
......My_..,.,._.......ng ..... ""'"""_""",..,,t.y.... ~ ... - ......... ~f.... YGnb6n ... HRB.
Bar Type No I fNboar To~ol Len th hape Be~d
mark and of l~,.,h No g Code Type
s11e rn•mb memb
ODZ 012 1 236 236 3550 00 A=llS~
I
Shape
=
006 014 1 20 20 5720 25 1A=6~lB=00lC=575D=515E=•SlB-·45il~
:,•'";.i."'~·+·~
007 014 1 20 20 5715 25 1 A=O~J B=OOJ C=5J5 D=575 E=45ll->4111~
MEAN
~'""l••>fo~+·~
ooa 010 1 40 40 1510 15 1 A=m B=141 [=1l49
009 08 1 12 12 1130 99 2 A=99 B=351 [d15
"
2 A=147 B=1150-•1n5 [=190 D=1151-•1ni E=19J F=I~"
MEAN aM35" a1=11" a MW a4=1Z" al=IJS" '~
011 D16 1 40 40 4585 99
~'""l••>fo~+·~ F
b013 08 1 80 BO 530 99 1 A=11i B=l~O
015 012 1 4 4 990 99 2 A=11~ B=1S~
016 D12 1 2 2 950 99 2 A=15~ B=15~
017 012 1 2 2 104D 99 2 A=1H 8=15~
IQ
IQ
IQ
Total Lengths and Weights
Number of members 1
Type T
Total Weight- Total
Diameter Length per unit We19ht
Im] Ikg/ml lkg)
~
~ f-~D--+-_Dc.1c1c1-+_Dc.DcD---j
a n o395 31.16
~ t---+-----t-----j
1D 114 0 617 70.58
~ f----+----+-----j
12 1136 0.888 1008.54
~ f----+----+-----j
14 229 1210 276.73
~ t--4cDl~+--,c.5cBcD--t~6lc1c5cD-i
~
18 131 2 DOD 262 40
~ f----+----+-----j
20 0 2 470 0 00
~ f----+----+-----"
22 0 2 980 0 00
~ t-~-+-~=--t-~---1
25 0 3 850 0 00
~ f----+----+-----j
28 0 4 830 0 OD
~ f----+----+-----j
~ f--D--+-~6.cl1cD-+_Dc.DcD---j
36 0 7 990 O.OD
~ t---+-----t-----j
40 0 9.860 0.00
~ ~--~--~---
Total
Length
,,,
Type R
Weight-
per unit
[kg/ml
Total
We19ht
(kgl
Type T Type R
Total Length - Bended:
Total Lengt-h - Straight-.
Total Length Im]
Total Weight - Bended·
Total Weight - Stra19ht
Total Weight (kg):
1180
2D92
1426
861
2287
Mean Size [mml
I 133
2A 30J04111 2nd submission of lechnlcal des91 A. K 3. Maurie . Arnaud
GENERAL WEIGHT kg
2287
CLIENT:
CHOEl.Wnr:
""
Bar Tjpe No llNb~'.~Mol llen th~hapelBend
mark and of ln',.,h No. 9 [ode Type
Sile membmernb
031 018 1 40 40 3280 15 1 A=1496 B=ll11 [=801
032 016 1 20 20 6270 15 1 A=l1l4 B=Ol (=l134
033 016 1 20 20 3710 OD
036 012 1 40 40 3850 15 1 A=1011 B=565 [=1181
037 D12 1 40 40 2050 99 1 A=ll~ B=149 (=14l•
D3B D12 1 40 40 1350 15 0 A=OH B=li1 [=01J
rMSO
Ol9 010 1 40 40 1350 13 1 A=IZ15
040 DB 1 4 4 1130 99 2 A=9i B=lSI (=lZS
041 DB 1 8 B 1140 99 2 A=rn1 B=lSI [=J15
042 DB 1 8 B 1160 99 2 A=IO B=lSI [=140 D=l15
BENDING DIAMETERS (mm)
I
Shope
=
Diameters 6 8 10 12 14 16 18 20 22 25 28
Hooks
[Type 11
Frames
!Type 2]
Hooks
[Type 11
Fr~me5
[Type 21
36 48
24 32
60 72 84 96 108 120 132 150 224
40 48 56 64 108 120 132 150 224
BAR DIMENSIONS
- THE DIMENSIONS ARE GIVEN ON THE OUTSIDE FIBER OF THE REBAR ISEE BELOW]
- THE TOTAL LENGTHS ARE CALCULATED ON THE BASIS OF THE CENTERLINE
(ISO 3766:2004 - METHOD Bl
- THE BENDING ANGLES ARE GIVEN IN DEGREES
""
PROJECT IMPLEMENTATION CONSULTANT
Tl/ VAA THVC Hll;N DIJ AN
SYSTRASA
HRB
1C 2Ml8110 UMated A. K IG. Maurie .Arnaud
f-~,."---1",..=.,~,'-~u~PDA=rn>"'---------------l~~~K,___F~~....=,~~·-1,,~<~AmmO="--l HANOI METROPOUTAN RAIL TRANSPORT PROJECT BOARD
1A 31101110 Fi18118a111 A.K 3.Mauria .Arnaud BANDl'ANDU'ONGsAT001HIHA.NQI
REVISION OATE DESCRIPTION IJESaEDBJ aEKEllBJ ClilEFOFDl!O
SO'AEJOI NGA.Y NQI DUNG 80'AD01 THl~ICE BT Cl(JNIGlllEJE
PROJECT DIRECTORIGIAMe0c IX/AN :
Alain Bllchereau
Bor Type No lofNboar Totol Len th Shape Bend
mark .nd of inmh No g Code Tjpe
me memb rnemb I
Shape
""
O'J1 016 1 12 12 1340 51 2 A=lOO B=16~ C=24l
071 016 1 4 4 1100 21 2 A=49D B=10l [=48l
Lengths of standard hooks Imm)
I Diameters 6 10 12 14 16 18 20 22 25
120 144 168 192 216 240 264 300
D
@_
Frames 0 0 0 0 0 0 o o O O
~ t--~[l"y~p_•c1[-+-+--t--t--t--+---t--+-+--t--t
"1~~~re~fi"' 72 96 120 144 168 192 216 240 264 300
Frames
(Tvne 2]
48
0 0 0 0 0 0 0 0
60 72 84 96 108 120 132 150
D F""' D
f--~il"YLPc'c1[-+-D-+-D-+-D-t-D-t--D-+-D--t-D-+-D-+-D-+---l
nchar~ge'
36 46!Type 1) 60 72 84 96 108 120 132 150
L
Frames
ITvoe 2]
Frames
0 0 0 0 0 0 0 0
65 65 65 65 65 72 BO 8B 100
!Type 2]
......__e--+~ccllho~c.~s,+-<
5
-
5
+--+---l-+--+-f--+--+-f--~
!Type 11 65 65 65 65 65 72 BO 88 100
0 0 0 0 0 0 0 0
Frames
ITvoe 2]
FILE NMIEITtN BAN v£ :
DESIGNED BYITlll£'r KE: :
A<K
CIECKED BYsoAT:
G. Mauris
CHIEFDESIGNERIa-iott11eM Tii1£T KE: :
P.Amaud
0 0 0 0 0 0 0 0
FORtMTIKHO eANv£ :
A1
STATUSTlNHT~:
Technical Design
DATEINGAY:
31/01110
Thladr-ingrnJlllnolba-IDar-.d,coplaclor-rapmcilcad
i1 whole ar in part or USlld for any Pll4XM8 wihoU; lh8 priorwrillfll"I
permissiondHRB.
Bin ve nQ' khOng auqc ph6p ar. dlol'IQ dllCI mQI hlrll tll)c, ml)! phln hay
IDAn bl), mil khOng o!uqc •II' .Dig~ ~IAln bin all. HRB.
PRO.ECTDlfAN: HANOI PILOT LIGHT METRO LINE Sectkln NOOn - HlllOI Ralwaystatlon
TU1N WONG sATBO rn1 rnlDlt::M TP HA NOi E>olil1 Nh&i- Ge Hill NOi
TnlElltNB!Nv!' NHUE RIVER CROSSING
lll1QT SONG NHUo
DECK - SA7'-SB7' - REINF - BAR LIST - 1 / 2
BAN ~T cAU - SA7'-SBT -COT TH~P- DANH Ml,IC TI-tANH - 1 / ~
DRA'MNGNO.IBAN v£ so: IPIC-TEC-GRR-WVO-J04-18545-B 2A
~
~
it
i
~ii:
15
ES1 S1
-___....__-
R~~ADJUSTM~T
DI UCH NH THANH llieP
FOR PT CONFLICT
=--- OOIV~fl()TPT ~ n@
I!!
~
uw .!:
F %
!I $i
!;l 8
uB
@' @) 10
PARAPET N .,,
o
.,..,,
~-..."'...
®O
~~
- t-
'7@,_,_
N~
N
"'.':'
( ( (
11
..-----
I~ - -
t ~
~
[ r
w ~
§ 2x2- D16 ~
c::
3" 21/11Y11
2A 3004'11
-'----- '----·- - - ....__ ~ '----·- - ·
DETAILX
CHI Tl~TX
SCALE: 1/10
TYLl;:1/10
Upda111d A.K
2nd aubml11lon at'lechnlcal dMlgn A . K
8 0 n @)9 ®
~~ ~~ :e;!.,, ~g9A 9A ...,.Ca 9A
·-Cl C>
·- <;:Gil..... .... .;g .,,
.. ... .;
....
8
SECTION A-A
MA"Jc~f:T,f--A
TYLS:1/20
I
( ( I
----'
I
_J_
HRB
1C ~8110
18 2Ml&'"IO
Upda111d A. K
1--=--i;;;=-"--+"u""PD,t;=JED;...__ _ _ _ _ _ _ _ _ _ _ _"-,,""_K"----==-.;.;..;;;= ---1 HANOI METROPOLITAN RAIL TRANSPORT PROJECT BOARD
1A 31m1110
REVISION DATE
SLrAOOI Nal.Y
F1m - . ,,_ K BAN DI/AN allONG sA.TaO THI HA NQI
DESCRIPTION
NQI DUNGWAfJOI
IHIHl!BI'
HIM!
CllllClllBI'
IOI.!
•
SA9 S3 SB9
KEY PLAN
K~ HO~.CH cHrNH
SCALE: 1/200
TYLS:1/200
PROJECT IMPLEMENTATION CONSULTANT
Tl1 VAN THl,IC HleN DI,/ AN
SYSTRAS.A
PROJECTDIRECTOR GIAMaocDI/AN:
Alain B~cheraau
n
€}
!i
·-<;:A
REBAR ADJUSTMENT
D1eu CHINH THANH cOr llieP
FOR PT CONFLICT "1
001 VOi XUNG fl()T PT 
FILE NAA1ElTtN e,l,i/£:
DESIGNED BY TH1£TK£ :
A. K
CHECKED BYSlll.T:
G. Maur1s
CHIEF~IGNERCll) NHleMlll1£rK£:
P. Amaud
SA6
SB8
.....Ci~
.....t:
,1
(
ETAILX )~D
CHI TIETX
DD
~
D gl
N
c;
SCALETYLE:
FORMATKHO BAN VE:
A1
SA7
SB7
<@) @)032 033
51 gj
85' SB6' SB7' SB6' S ' S2 ES2
SA6
SB6
  I  ,  I    l , ---, ---, ---, ---,   ,-,-
" r-
--"'
Ir
i---- I--- ~
_i---
2x20 - D12
@l -[6.1150
016 @ §
BLISTER TYPE 1
-~
/R0 L~ 1
i---- i----
I 1 REINFORCEMENT SEE DWG.
- rn: ~
COT THePXEM BAN v£I---"
~ PIC-TEC-GRR-WVO-J04-18662-B
- I---"
- i---
i---
IL----
--~
It: ~  PIC-TEC-GRR-WVO-J04-18663-B
-- - --:::: i-- P-
1--- = .L
014 ~ .____}
014 007 .____}
SECTION B-8
MAT CAT B-B
os 8 n
•SCALE : 1/20
TY LS:1/20
NOTES: ~~~~~~~~~~~~~~~~~~~~~~
GHI CHL.f:
1. REINFORCEMENT YIELD STRENGTH: FY=420 MPA.
1. ClldNG DO CHAY CllA cx:fTTHE'.P :fy---420 Mpa
2. CONCRETE COVER: C=50 MM.
2. Ld PeeTONG M Ov£c=50 mm
3. FOR PARAPET S"fARTER BARS REFER TO DWG. NO.
3. DE. XEM THANH COT THe!P CHO'COA LAN CAN XJNXEM BAN v£SO
PIC-TEC-GRR-WVO-J00-18803-B TO PIC-TEC-GRR-WVO-J00-18808-B
STAlUS TfNH~G : PROJECT CVAN: HANOI PILOTLIGHT METRO LINE Sedian Nhon•HantiRailwayS1ation
Teclmical Oesign
DAlENGAY:
31/01/10
TIM:N flOONG SAT 00 THITHIfll~M TP HA NQI Batn N~n · Ga Hi NOi
Tm.ETtNB,l,iVE: NHUE RIVER CROSSING
VU'QT SONG NHUI;:
Thil <Rwi'ID mUll:notbe eithlrlOlrled,<q>ied«otl'lll'Wile NP'Odiacl
ln wtdeah P11rtorul8dfor•nr prupmewllhoul:.. prlor'Mltsl
parmlllllonot HRB.
DECK- SA7-SB7 - REINF -1/2
BAN ~T cAU - SA7-SB7 ·COT THi:P - 1 / 2
......My_..,.,._......."11 ..... ..,.. .... _m(llpMnt.y
....~ ...- .........~t~'"""'""'""""-
DRAl'l1NGNO. BANVESO:
PIC-TEC-GRR-WVO-J04-18548-B 3A
8oc T1pe f:'o Total L thlShape Bend
I
8oc Type l:"o Totol hope Bend
I
8oc T1pe No ~"fNbo''.~Totol llen th~hapel Bend
I
No fbor No fbar
Lengfhmark
'"" of ""'h No '"9 [ode Type Dimensions Shope
"" mark
'"" of mmh No Code Type D1mens1ons Shape
"" mar•
'"" of ""'h No. 9 [ode Type D1mens1ons Shape
""s11e memb memo me memb memb s11e memb memb
" " " " "" "" "" " " "" "" "
°"' 012 1 236 236 3550 00 AdSIO
= m 018 1 40 40 3280 15 1 A=1496 B=llll (=8D1
~ °" 016 1 12 12 1340 51 2 A=16D 8=100 [=14l
g
006 014 1 20 20 5720 25 1 A=00lB=0Dl[=515D=575E=45l8-·•SBl~ m 016 1 20 20 6270 15 1 Aol134 Bo6l Colll4
~ 012 016 1 4 4 1100 21 2 Ao•9D BolDl [o,Bl
4=FMEAN
·~
.,.
-·~·
001 014 1 20 20 5715 25 1 Ao0QlBoODJ[o515DoSJSEo45Jl-••S71~ 033 016 1 20 20 3710 00 AoJJOi
=MEAN
·~ ""' -·~·
'°" 010 1 40 40 1510 15 1 A=l1l B=l45 C=1l49
~ m 012 1 40 40 3850 15 1 A=1D12 B=S6S [=1181
~
000 08 1 12 12 1130 99 2 A=99 BdSI (=l15
IF m 012 1 40 40 2050 99 1 A=SlO 8=149 C=14l4
~<Xlo91"<>1o90•
"
011 016 1 40 40 4585 99 2 AolJ8o1150-•1915[o196Doll51-•1910Eo19Jfo1~ 030 012 1 40 40 1350 15 0 Ao;iJ BoJj) (oOJJ
~MEAN a1=1JS"aZ=71"al=103"a•=l1"a5=1JS" rl=55~
·~ ""' -·~· '
OB DB 1 BO BO 530 99 1 A=l19 B=lO~
6 m 010 1 40 40 1350 13 1 A=1115
e:::=i
°" 012 1 4 4 990 99 2 A=l10 B=ISO
Ikd °'° 08 1 4 4 1130 gg 2 A=9B B=l51 C=l15
IF
016 012 1 2 2 950 99 2 AollO BolSO
Ikd 0'1 08 1 8 8 1140 99 2 Ao107 BoJ51 CoJ15
IF
011 012 1 2 2 1D40 99 2 A=lil B=ISO
Ikd 8'2 C8 1 8 8 1160 99 2 A=IG B=l51 C=140 O=l15
n
"""'•-OT>- '"""" -011'- "'""'"-OTP-
c c
Total Lengths and Weights
Number of members 1
Type T Type R BENDING DIAMETERS Imm)
~
Lengths of standard hooks Imm)
Total Weight- Total Total Weight Total Diameters 6 8 10 12 14 16 18 20 22 25 28
Diameter Length per unit- Weight Length per unit- Weight Hooks Diameters 6 8 10 12 14 16 18 20 22 25
,,1 [kg/ml [kg)
'"'
(kg/ml lkg) [Type 1) 36 48 60 12 84 96 108 120 132 150 224
~
D
6 0 0.222 0.00 Frames
24 32 40 48 56 64 108 120 132 150 224~
!Type 2]
8 19 0 395 31.16 11nchor;iges
72 96 120 144 168 192 216 240 264 300
~ Hooks
0 0 0 0 0 0 0 0 0 0 0
[Type 1)
10 114 0617 70.58 [Type 11 D
~ R
@_
Frames
0 0 0 0 0 0 0 0 0 0
12 1136 0.888 1DOB.54 Fr;imes
0 0 0 0 0 0 0 0 0 0 0
!Type 2]
~
[Type 2)
14 229 1210 276.73 ~nchoroges
12 96 120 144 168 192 216 240 264 300
~
403 1.580 637 50 R
(Type 1)
16
Frames~
BAR DIMENSIONS 0 0 0 0 0 0 0 0 0 0
1B 131 2 000 262 40 ITvne 2]
~
20 0 2 470 000 - THE DIMENSIONS ARE GIVEN ON THE OUTSIDE FIBER OF THE REBAR [SEE BELOW]~
22 0 2 980 000 - THE TOTAL LENGTHS ARE CALCULATED ON THE BASIS OF THE CENTERLINE !'lnchor<iges~
!ISO 3766:2004 - METHOD Bl 36 48 60 12 84 96 10B 120 132 15025 0 3 850 000 [Type 1)
~
4 830 - THE BENDING ANGLES ARE GIVEN IN DEGREES
~
D
Frames28 0 000 0 0 0 0 0 0 0 0 0 0~ !Type 2]
32 0 6.310 0.00
~
'~ f1nchoroges
36 48 60 12 84 96 108 120 132 15036 0 7 990 0.00 09 (Type 1)
~ R
Frames40 0 9.860 0.00 D 0 0 0 0 0 0 0 0 0~
ITvoe 2]
~ .Type T Type R
!'lnchor<iges
Total Length - Bended: 1180
,:tf-
[Type 1) 65 65 65 65 65 65 12 BO BB 100
Total Lengt-h - Straight-.
D
Framesm a 0 0 0 0 0 0 0 0 0 0
Total Length Im] 2092
!Type 2]
• '--- f1nchorages
65 65 65 65 65 65 12 BO BB 100Total Weight - Bended· 1426
R
(Type 1)
Total Weight - Straight 861 Frames
0 0 0 0 0 0 0 0 0 0
Total Weight (kg): 2287
,, ITvoe 2]
Mean Size [mml GENERAL WEIGHT kg
Yi__I
133
I I
2287
I
"'''"""'!' .,..,.,. -011'-
'"'"""-OTP-
~
' CLIENT:
II
PROJECT IMPLEMENTATION CONSULTANT FILENMIEITtN BAN'£: : sr.ALEIrtL(: : STATUSTlNHT~: PRO.ECTIDl/ #.! : HANOI PILOT LIGHT METRO LINE Sectkln NOOn - HlllOI Ralway station
~ I CHOEl.Wnr: Tl1 VAA THVC Hll;N DIJ AN PIC-TEC-ORR-WVQ.JIM-1BMIMl_JIA.DWa - Technical Design
TU1N WONG sATBO rn1 rnlDlt::M TP HA NOi E>olil1 Nh&i- Ge Hill NOi
~ ~ ~ SYSTRAS.A
DESIGNED BYITlll£'rKE: : FORtMT KHOeANv£ : DATENGAY: Tm.EITtN BAN v£ :
~ HRB NHUE RIVER CROSSING
'~ A.K A1 31/01110 lll1QT SONG NHUo7
~§ "' "'"'11 2nd submission of lechnlcaldes91 H 3.Maurls
·"""'""
!!s 1C ....10 UM•,_, H IG. Maurts
·"""'"" CIECKED BYsoAT: Thladr-ingrnJlllnolba-IDar-.d,coplacl<r-rapmcilcad DECK- SA7-SB7 - REINF - BAR LIST-1I2HANOI METROPOUTAN RAIL TRANSPORT PROJECT BOARD
q 1B ,...,, UPDATE>
~·
jG. Maurie
"·"""'"" G. Mauris i1 whole ar in part <r used far any prl4)Ca wihoU; lh8 priarwrillBn
BAN ~T cAU - SA7-SB7 -COT TH~P- DANH Ml,IC TI-tANH -1 /
~ 1A 31/01/10 Fi18118a111
~·
3.Mauris
·"""'"" BAN OiiAN DUONG sAT00 1111 HA N()I permissiondHRB.
! •
""'"" -· PROJECTDIRECTORGIAMe0c IX/AN : CHIEFDESIGNERIa-iott11eM Tii1£T KE: : Bin ve nQ'khOng auqc ph6p ar. dlol'IQ dllCI mQI hlrll tll)c, ml)I phln hay DRA'MNGNO.IBAN v£ SO :
I2A~ B
REVISION
"" DESCRIPTION ClilEFOFDl!O IDAn bl), mil khOng o!uqc •II' .Dig~ ~IAln bin all. HRB.
PIC-TEC-GRR-WVO-J04-18549-B
"''"' "" NQI DUNG SO'A 001 THl~ICE
"" OONIGlllETE Alain Bllchereau P.Amaud
~
~
i
I!!
~
t ui w .!:
F %
!I $i
!;l 8
~ uii: B
15
ES1 S1 SAS' SA7' SA6'
=---
PARAPET se:ii:
STARTER BARS ~i.
N
0
THANH COT THEP NHO RA <;:l
®0
:Q ~
"?@,
-.t-
N~
N
x
~
( ,, '
( ( (
' ~ I

i 1111~
l.-----! -
t
!.....-
,_
~
,___
~
~
l,j
@> 2x2-D16
c::
_ ,,______ ~ -- ~~~
~ - - ~·
DETAILX
CHITl~TX
SCALE: 1/10
TYLS: 1/10
100.,..,,
9ii0
N
>C
N
(
~ENT
~fl1£U CHlNH IBANH c0TTHEP
FOR PT CONFLICT
E>Ol~ElOTPT
~ @ n @9
~~ ~§; ...::;;:
~g'TA 9& i:jii... .. ,_
.... N ..... 0
>C N
....
@
- SECTION A-A
M,;TCATA-A
(
-
-U_
SCALE: 1/20
TYLS:1/20
o----+----+----------------+----...,___...,____. Q.IENT:
o----+----+----------------+----...,___...,____. CHOflAuTU:
3" 21/11Y11
2A 3(WU11
HRBUpda111d A.K
2nd aubml11lon at'lechnlcal dMlgn A . K
1C ~8110
n
®
~g
.~
c;:a.
...
....10
mo
..-.....
•
SA9 $3 $89
KEY PLAN
K~ HO~CH CHfNH
SCALE: 1/200
TYLS:1/200
PROJECT IMPLEMENTATION CONSULTANT
TU VAN THl,IC HleN DI,/ AN
SYSTRAS.A
18 2Ml&<'IO
Upda111d A. K
UPDATED A. K HANOI METROPOLITAN RAIL TRANSPORT PROJECT BOARD
1----+---+-F-lm--..--------------+-,,-.K---4---4------1 BAN DI/AN llWNG sA.rllOTHI llANQI1A 31m1110
REVISION DATE
SLrAOOI NQl,y
DESCRIPTION
NQI DUNGWAfJOI
IHIHl!BI'
HIM!
CllllCIDBI'
IOI.!
PROJECTDIRECTORGIAMaocDI/AN:
Alain B~cheraau
FILE NAA1ElTtN e,1,1/£:
DESIGNED BYTH1£TK£:
A. K
CHECKED BYSlll.T:
G. Maur1s
CHIEF ~IGNERCll) NHleMTH1£rK£:
P. Amaud
SA9' ___
$89' ~
el~
9•..s::       
~
11_
AILX )DET
CHITle!TX
DD
<§x§X§)
D ~1
'f" [f'
SAS'
SBB'
@ @032 033
;;[ ;;[
I I I 11~_
.
   ,---.,
I
SA7'
SBT
2x20- 012
@1150 @>-
016@
II
014
~014
7
08
SECTION B-8
M,;T CAT B-B
SCloLE TYLE:
FORMATKHO BAN VE:
A1
STAlUS TfNH~G :
Teclmical Oesign
DATENGAY:
31/01/10
Thil <Rwi'ID mUll:notbe eithlrlOlrled,<q>ied«otl'lll'Wile NP'Odiacl
ln wtdeah P11rtorul8dfor•nr prupmewllhoul:.. prlor'Mltsl
parmlllllonot HRB.
......My_..,.,._.....,ng.....""'"""_'""',..,,o.y.... ~ ... - ......... ~f.... YGnb6n ... HRB.
SCALE: 1120
TY LS:1120
NOTES: ~~~~~~~~~~~~~~~~~~~~~~
GHI CHL.f:
1. REINFORCEMENT YIELD STRENGTH: FY=420 MPA.
1. ClldNG DO CHAY CllA cx:fTTHE'.P :fy""-420 Mpa
2. CONCRETE COVER: C=50 MM.
2. Ld P Be! TONG e.<ov£c=50 mm
3. FOR PARAPET S"fARTER BARS REFER TO DWG. NO.
3.Ee! XEM THANH COT THe!P CHO' COA LAN CAN XJN XEM BAN VESO
PIC-TEC-GRR-WVO-J00-18803-B TO PIC-TEC-GRR-WVO-J00-18808-B
PROJECT CVAN: HANOI PILOTLIGHT METRO LINE Sedion Nhon•HantiRailway S1ation
TIJY£NflOONG sATElOTHITHIfll~M TPHANQI ElatnN~n · Ga Hi NOi
Tm.E~Ne,l,IVE : NHUE RIVER CROSSING
VU'QT SONG NHUI;:
DECK- SA8'-SB8' - REINF -1/2
BAN W.T c:Au. SAS'-SBB' - cOT n -11:.P. 112
DRAl'l1NGNO. BANVESO:
PIC-TEC-GRR-WVO-J04-18552-B 3A
Boe Type No. l~fNbo''.~Total llen fh ~hapelBend
I
Boe Type No 1,fNboar To~al hape Bend
I
Boe Type Bo
Bo
Totolll th hope Bend
I
Length fbor
mark
'"" of inmh No. g [ode T1pe D1mens1ons Shape
"" mark
'"" of in,.,h Bo Code Type D1rnens1ons Shape
"" mark
'"" o1
"'"h No. '"9 [ode Type 01mens1ons Shape
""size mernO rn•mb Sile rn•mb memb S11e memb mernb
"" " "" " "" "" " " " " "" "
'°' D12 1 178 178 3560 00 A=l5S5
= on 012 1 2 2 1040 99 2 A=19lB=15D
IQ "" OB 1 B B 1160 99 2 A=86 B=ll1 (=14D D=l1S
n004 D15 1 SB SB 3750 00 A=l749
= °" D1B 1
'° '° 3260 15 1 A=1>% B=1l12 C=iD1
~ °" D16 1 12 12 1340 51 2 A=160 B=ZO~ [=11-l
g
000 014 1 20 20 5755 2S 1 A=00JB=00J[=515D=lllE=4011->4SIJ~ m D16 1 20 20
MEAN
6270 15 1 A=lll4B=6J[=J1J
~ on D16 1 4 4 1100 21 2 A=49~ B=1~l [=483 y~
""...·~
"°' D14 1 20 20 5755 2S 1 A=6ilB=60l[=515D=l11E=4111-·46D4~ OB D16 1 20 20 3710 00 A=l119
=MEAN
~
""...·~
"°" D10 1 40 40 1510 1S 1 A=lll B=l45 [=ll49
~ "" D12 1 40 40 3850 15 1 A=1011B=505[=17il
~
""' DB 1 12 12 1130 99 2 A=99 B=ll1 C=l15
n rn D12 1 40 40 2050 99 1 A=SJO B=l49 [=H-l4
~aM1"a1=il"
"" D16 1 40 40 4465 99 1 A=l41B=llOl-•1150[=1%D=1iQ0-•1151E=19lf=1~ "'" D12 1 40 40 1350 15 0 A=09lB=l91[=61l
~MEAN al=1l>'a1=71'al=1aB•a4=11'aS=1l5' , c1=5Si
~
""...·~
on DB 1 BO BO S30 99 1 A=l19 B=liO
b rn D10 1 40 40 1350 13 1 A=1115
t==
01S D12 1 4 4 990 99 2 A=IJI B=lli
IQ 040 DB 1 4 4 1130 99 2 A=9i B=l51 [=315
n
014 D12 1 2 2 9SO 99 2 A=l50 B=l50
IQ 041 DB 1 B B 1140 99 2 A=111 i=l51 [=J15
n
""'"'•-011'- '"""""•-OTP- """""-011'-
c c
Total Lengths and Weights
Number of members 1
Type T Type R BENDING DIAMETERS Imm)
~
Lengths of standard hooks (mm)
Total Weight Total Total Weight Total Diameters 6 B 10 12 14 16 1B 10 12 2S 2B
Diameter Length per unit Weight Length per unit Weight Hooks Diameters I 6 B 10 12 14 16 1B 20 12 2S
,,, [f,g/m) [f,g]
'"'
(f,g/m] li,g) (Type 1) 36 48 60 72 B4 96 10B 120 132 1SO 224
~
D
6 0 0.222 0.00 Frames
24 32 40 4B S6 64 10B 120 132 1SO 124~
!Type 2)
B '9 0395 31.16 i'l(~~~re"r1esl 72 96 120 144 16B 192 216 240 264 300
~ Hool,s
0 0 0 0 0 0 0 0 0 0 010 114 0617 70.56 (Type 1) D
~ R
@_
Frames I 0 0 0 0 0 0 0 0 0 0
12 932 0.888 827 28 Frames
0 0 0 0 0 0 0 0 0 0 0
(Type 2)
~
(Type 2)
14 230 1210 278.54 11(~~~rearlesl 72 96 120 144 16B 192 216 240 264 300
~
616 1.580 973.56 R16
~
BAR DIMENSIONS Frames I 0 0 0 0 0 0 0 0 0 0
1B 131 2000 262 40 [Tvne 2)
~
20 0 2 470 000 - THE DIMENSIONS ARE GIVEN ON THE OUTSIDE FIBER OF THE REBAR (SEE BELOW)~
12 0 2 980 000 - THE TOTAL LENGTHS ARE CALCULATED ON THE BASIS OF THE CENTERLINE
~1~~~re"r1e'I 36
~
0 3850 0 00 !ISO 3766:2004 - METHOD Bl 4B 60 72 B4 96 10B 120 132 1SO2S
~
4 830 - THE BENDING ANGLES ARE GIVEN IN DEGREES
<L
D
Frames I 02B 0 0 00 0 0 0 0 0 0 0 0 0~ !Type 2)
32 0 6.310 0.00
~
'~ l'nchoragesl 36 4B 60 72 B4 96 10B 120 132 1SO36 0 7 990 0.00 ,, !Type 1)
~ R
40 0 9.660 0.00 Frames I 0 0 0 0 0 0 0 0 0 0~
ITvDe 2)
~ >
Type T Type R
Total Length - Bended: 1177
;tr-
~1~~~re"r1e'I 65 6S 6S 6S 6S 6S 72 BO BB 100
Total Length - Straight.
D
Frames I 092S 0 0 0 0 0 0 0 0 0 0
Total Length lml 2102
!Type 2)
• '--- l'nchoragesl 65 6S 6S 6S 6S 6S 72 BO BB 100Total Weight - Bended· 1421
R
!Type 1)
Total Weight - Straight 1024 Frames I 0
"
0 0 0 0 0 0 0 0
Total Weight (kg): 2444
,, ITvDe 2)
Mean Size Imm) GENERAL WEIGHT kg
';i__I
13 7
I I
2444
I
""'"""'"' """'"'"-DTP- ,_,,,•-OTP-
~
' CLIENT:
II
PROJECT IMPLEMENTATION CONSULTANT FILENMIEITtN BAN'£: : sr.ALEIrtL(: : STATUSTlNHT~: PRO.ECTIDl/ #.! : HANOI PILOT LIGHT METRO LINE Sectkln NOOn - HlllOI Ralway station
i I CHOEl.Wnr: Tl/ VAA THVC Hll;N DIJ AN PIC-TEC-ORR-WVQ.JIM-1BllllMl_JIA.DWa - Technical Design
TU1N WONG sATBO rn1 rnlDlt::M TP HA NOi E>olil1 Nh&i- Ge Hill NOi
~ ~ SYSTRAS.A
DESIGNED BYITlll£'r KE: : FORtMTIKHO eANv£ : DATEINGAY: Tm.EITtN BAN v£ :
~ HRB NHUE RIVER CROSSING
'~ A.K A1 31/01110 lll1QT SONG NHUo7
~§ "' "'"'11 2nd submission of lechnlcal des91 H 3.Maurls
·"""'""
!!s 1C ....10 UM•1"d H IG. Maurta
·"""'"" CIECKED BYsoAT: Thladr-ingrnJlllnolba-IDar-.d,coplacl<r-rapmcilcad DECK - SA8'-SB8' - REINF - BAR LIST - 1 / 2HANOI METROPOUTAN RAIL TRANSPORT PROJECT BOARD
q 1B ,...,, UPDATE>
~·
jG. Mauria
"·"""'"" G. Mauris i1 whole ar in part <r used far any prl4)Ca wihoU; lh8 priorwrillBn
BAN ~T cAU - SA8'.SB8' -COT TH~P- DANH MVC n<ANH - 1Ii
~ 1A 31/01/10 Fi181 l8al8
~·
3.Mauria
·"""'"" BAN OiiAN DUONG sAT00 Tiii HA N()I permissiondHRB.
! •
""'"" ...... PROJECTDIRECTORIGIAMe0c IX/AN : CHIEFDESIGNERIa-io tt11eM Tii1£T KE: : Bin ve nQ' khOng auqc ph6p ar. d1o11g dllCI mQI hlrll tll)c, ml)I phln hay DRA'MNGNO.IBAN v£ SO :
I2A~ B
REVISION
""" DESCRIPTION ClilEFOFDl!O IDAn bl), mil khOng o!uqc •II' .Dig~ ~IAln bin all. HRB.
PIC-TEC-GRR-WVO-J04-18553-BS(IAOO
"" NQI DUNG SO'A 001 THl~ICE
"" Cl(JNIGlllETE Alain Bllchereau P.Amaud
~
~
it
i
~ii:
15
ES1 S1
~ PARAPET !!!(i!
i, STARTER BARS ::/:A
THANH COT THEP NHO RA ';:
SAS' SA7' SA6'
2x20-D12
@150
10
~~T
~Ell U CH NH TliANH TTHEP
~@~,filu~l~~
8 0
n--
9 @)
~ti! ~~ a ~~
911!. 9A ma
Ca
9•Cl Cl
·-... N .... a
.. N
N
;!~ -.t~
n
®
~g
·-c;:a.
..
SA9 S3 SB9
KEY PLAN
K~ HO~CH CHfNH
SCALE: 1/200
TYLl;:1/200
~@ C?@
~~-fo04~2~x3~1-~D1=6----1~ ~~~~~~~~~~~~~~~~~~~~~~~~~~~~~~~~'("/ @1150 ~
~I
I!!
~
uw .!:
F %
!I $i
!;l 8
uB
®0
"'"'C¥@_,_ _
N ~
N
x
~
I
-1 l;:::-
~
L..--.-! -
t

~
I--._
~
>Jr-
~
II
,j
@ 2x2- 016
c::
-- ~-- ~ ~ ~ "" --- ~
DETAILX
CHI Tl~TX
SCALE: 1/10
ITLI;: 1/10
I
f.-t
I
-Ll
9
SECTION A-A
MAT CATA-A
SCALE: 1/20
TY Li;:1/20
o----+---+---------------_.____......__ __.....__ ___. Q.IENT:
o----+---+---------------_.____......__ __.....__ ___. CHOflAuru:
3" 21/11Y11 Upda111d
2A 3004'11 2nd aubml11lon at'lechnlcal dMlgn HRBA.K
A . K
1C ~8110 Upda111d A . K
18 2MIBl10 UPDATED
1A 31m1110 Fl'"111a»
A . K HANOI METROPOLITAN RAIL TRANSPORT PROJECT BOARD
!----+---+----------------,.-.K---4----+-----l BAN DI/AN llWNG IA.TllOTHI llANQI
REVISION DATE
SLrAOOI Nal.Y
DESCRIPTION
NQI DUNGWAfJOI
IHIHl!BI'
HIM!
CllllClllBI'
IOI.!
•PROJECT IMPLEMENTATION CONSULTANT
11 VAN THl,IC HleN DI,/ AN
SYSTRAS.A
PROJECTDIRECTORGIAMaocDI/AN:
Alain B~cheraau
n
9
a
ma
Ca
·-<;:A
..
FILE NAA1ElTtNBAN/£:
DESIGNED BY TH1£TK£ :
A. K
CHECKED BYSlll.T:
G. Maur1s
CHIEF ~IGNERCll) NHleMlll1£rK£:
P. Amaud
SA9 SA8
SBB
SA7
587SB9 (§
<@) @)032 033
Na
51 5]
Ci~
.....t:
,1  I       I  1,--,---,---,---,-   ,-·  ·
'J
2x2 0- D12
@l-'r ~ @1150
DETAILX ) 016®§
CHI TIETX
BLISTER TYPE 1
DD
1R0 LOAI 1
L~
,______ .______
I
V REINFORCEMENT SEE DWG.,_
~
1---
L~
L---- 1--- '---- '- I-- ~I
~ - I iSffi_m-~~04--18662-B
3-B
- - ~
,.,,...-
..__ '-~
PIC-TEC-GRR-WVO-J04--1866
I-=
= k '--- - -~~ ,.L-;;....-- L-- ' - 014
~ L_J0 14 L _ J
~i 08 009 n
SECTION B-B
MAT CAT B-B
(~
SCALE TYLE:
FORMATKHO BAN VE:
A1
STAlUS TfNH~G :
Teclmical Oesign
DAlENGAY:
31/01/10
Thil <Rwi'ID mUll:notbe eithlrlOlrled,<q>ied«otl'lll'Wile NP'Odiacl
ln wtdeah P11rt orul8dfor•nr prupmewllhoul:.. prlor'Mltsl
parmlllllonot HRB.
......My_..,.,._......."11 ..... ..,.. .... _m(LlpMnt.y
.... ~ ... - .........~t~ ,,.,, ...... HRB.
SCALE: 1/20
T'l' Ll;:1/20
NOTES: --------------------~
GHI CHL.f:
1. REINFORCEMENT YIELD STRENGTH: FY=420 MPA.
1. ClldNG fl0 CHAY CllA cx:fTTHE'.P :fy--420 Mpa
2. CONCRETE COVER: C=50 MM.
2. Ld P BE TONG e.<ov£c=50 mm
3. FOR PARAPET srARTER BARS REFER TO DWG. NO.
3. flE. XEM THANH COT THe!P CHO' COA LAN CAN XJN XEM BAN 111:SO
PIC-TEC-GRR-WVO-J00-18803-B TO PIC-TEC-GRR-WVO-J00-18808-B
PROJECT CVAN: HANOI PILOTLIGHT METRO LINE Sedion Nhon•HantiRailway S1atial
TllY£NflOONG sAT00llilTHIfll~M TPHANQI Batn N~n · Ga Hi NOi
Tm.ETtNBANVE: NHUE RIVER CROSSING
VU'QT SONG NHUI;:
DECK- SA8-SB8 - REINF -1/2
BAN ~T cAU - SA8-SB8 ·COT THi:P - 1 / 2
DRAl'l1NGNO. BANV£SO:
PIC-TEC-GRR-WVO-J04-18556-B 3A
Boe Type No l~rNo'or htalll fh hope Bend
I
Boe Type No ~-fNboor Total
Length
hope Bend
I
Boe Type No 1~.rNboar Total
Length
Shope Bend
I
mark
'"" of inmh No. eng [ode Type D1mens1ons Shope
"" mark
'"" of ""'h No [ode Type D1mens1ons Shope
"" mark
'"" of in,.<h No [ode T1pe Dimensions Shope
""size mernb rn•mb 11ze memb memb size memb memb
"" " "" " "" "" " " " " " "
"'
ft°" D12 1 178 178 3560 00 A=l555
= on 012 1 2 2 920 99 2 A=151B=l•l[=lllD=l50E=ll9f=14lG=185D.. 000 DB 1 B B 1160 99 2 A=86 B=l51 [=140 D=l15
<>1=11"<>MIB"<Xl=91"<>4=10.<X5=12"<>0= ,,
004 D15 1 62 62 3750 00 A=l749
= °" 018 1 40 40 3260 15 1 A=Z4% B=1l11 C=801
~ 001 D16 1 12 12 1340 51 2 A=110 8=100 (=14l
g
006 D14 1 20 20 5755 25 1 A=00l8=00ll=515D=515E=4011->458J~
°" 016 1 20 20 6270 15 1 A=JIJ4 B=Ol l=J1J4
~ on D16 1 4 4 1100 21 2 A=410 B=ZOJ l=48J yI~.,,
-·~
000 D14 1 20 20 5755 25 1 A=00l8=60lC=515D=mE=4>11-·4604~ OB 016 1 20 20 3710 00 A=l119
=MEAN
1-.,,
-·~
000 010 1 40 40 1510 15 1 A=11l 8=145 [=IJ49
~ 015 012 1 40 40 3850 15 1 A=1011 8=565 (=1181
~
000 D8 1 12 12 113D 99 2 A=99 8=ll1 C=311
n. m 012 1 40 40 205D 99 1 A=lli 8=149 [=l>JI
rida1=i1" a1=9~"
011 D16 1
'° '° 4465 99 2 A=141B=llQl-•1110[=190D=1800-•1851E=1HF=1~ 0'8 012 1
'° '° 1350 15 0 A=093 8=l97 [=Oll
~MEAN «1=1ll'«1=12'al=1a8•ot4=12'a5=1ll• c1=55~
1-.,,
-·~ '
on DB 1 80 80 530 99 1 A=119 B=liO
b "" 010 1 40 40 1350 13 1 A=1211
t:::::=i
"" D12 1 6 6 990 99 2 A=171 8=151
IQ 099 08 1 4 4 1130 99 2 A=9B B=lSI [=315
n.
010 D12 1 2 2 950 99 2 A=150 8=150
IQ 0'1 08 1 8 8 1140 99 2 A=10J 8=351 [=l15
n.
'"''"" -011'- '"""""•-OTP- "~<l>ll•-DTP-
c c
Tot-al Lengt-hs and Weights
Number of members 1
Type T Type R BENDING DIAMETERS Imm)
~
Lengths of st-andard hooks Imm)
Total Weight Total Total Weight Total Diameters 6 8 10 12 1' 16 18 20 22 25 28
Diam el-er Length per unit Weight Length per unit Weight Hooks Diameters I 6 8 10 12 14 16 18 20 22 25
,,, [kg/ml [kg]
'"'
lkg/m] lkg) (Type 1] 36 48 60 12 84 96 108 120 132 150 224
~ D
6 0 o222 000 Frames
24 32 40 48 56 64 108 120 132 150 224~
!Type 2)
8 19 0.395 3116 ~1~~~reaf1esl 72 96 120 144 168 192 216 240 264 300~ Hooks
10 114 D.617 70 SB (Type 1) 0 0 0 0 0 0 0 0 0 0 0 D
~
933 0888
R
Frames
@_
Frames I 0 0 0 0 0 0 0 0 0 0
12 828.82 0 0 0 0 0 0 0 0 0 0 0 IType 21
~ ITvoe 2)
~1~~~reaf1esl l214 230 1.Z1D 278 54 96 120 144 168 192 216 240 264 300~
16 631 1SBO 997.26 R
~
BAR DIMENSIONS Frames I 0 0 0 0 0 0 0 0 0 0
18 131 2.000 262.40 IType 21
~
20 0 2.4 70 0.00 - THE DIMENSIONS ARE GIVEN ON THE OUTSIDE FIBER OF THE REBAR ISEE BELOW)
~
22 0 2.980 0.00 - THE TOTAL LENGTHS ARE CALCULATED ON THE BASIS OF THE CENTERLINE
f'l(~~~reaf1esl 36
~
!ISO 3766.2004 - METHOD Bl 48 60 12 84 96 108 120 132 15025 0 3.850 0.00
~
- THE BENDING ANGLES ARE GIVEN IN DEGREES
~
D
28 0 4.83D 0.00 Frames I 0 0 0 0 0 0 0 0 0 0~ IType 21
32 0 6.310 0.00 A E
f'l(~~~reafJesl 36
~
n____,t-"-' 48 60 12 84 96 108 120 132 15036 0 7.990 0.00
~ R
40 0 9 860 0 00 Frames I 0 0 0 0 0 0 0 0 0 0~
~} ~ .. ITv~e 2)
Type T Type R
Total Length - Bended 1179
r f'l(~~~reaf1esl 65 65 65 65 65 65 12 80 88 100
D
Total Length - Straight 940 0 Frames I 0 0 0 0 0 0 0 0 0 0
Total Length Im): 2119
IType 21
Total Weight- Bended: • "-- f'l(~~~reafJesl 65 65 65 65 65 65 12 80 88 100
1422
R
Total Weight- Straight: 1048 Frames I 0 0 0 0 0 0 0 0 0 0
Total Weight lkg). 2469
,, ITv~e 2)
Mean Size Imm) GENERAL WEIGHT kg
YLI
m
I I
2469
I
""'""''"' "~''°•-DTP-
'""'°" -DTP-
~
' CLIENT:
II
PROJECT IMPLEMENTATION CONSULTANT FILENMIEITtN BAN'£: : sr.ALEIrtL(: : STATUSTlNHT~: PRO.ECTIDl/ #.! : HANOI PILOT LIGHT METRO LINE Sectkln NOOn - HlllOI Ralway station
i I CHOEl.Wnr: Tl/ VAA THVC Hll;N DIJ AN PIC-TEC-ORR-WVQ.JIM-1Blll!l'-8_2".DWa - Technical Design
TU1N WONG sATBO rn1 rnlDlt::M TP HA NOi E>olil1 Nh&i- Ge Hill NOi
~ ~ SYSTRAS.A
DESIGNED BYITlll£'rKE: : FORtMTIKHO eANv£ : DATEINGAY: Tm.EITtN BAN v£ :
~ HRB NHUE RIVER CROSSING
'~ A.K A1 31/01110 lll1QT SONG NHUo7
~§ "' "'"'11 2nd submission of lechnlcaldes91 H 3.Maurls
·"""'""
!!s 1C ....10 UM•1"d H IG. Maurta
·"""'"" CIECKED BYsoAT: Thlad-ngrnJlllnolba-IDal-.d,coplaclor-rapmcilcad DECK - SA8-SB8 - REINF - BAR LIST -1 I 2HANOI METROPOUTAN RAIL TRANSPORT PROJECT BOARD
q 1B ,...,, UPDATE>
~·
jG. Mauria
"·"""'"" G. Mauris i1 whole ar in part or used for any prl4)Ca wihoU; lh8 priorwrillBn
BAN ~T cAU - SA8-SB8 -COT TH~P- DANH Ml,IC TI-tANH -1 /
~ 1A 31/01/10 Fi181 l8al8
~·
3.Mauria
·"""'"" BAN OiiAN DUONG sAT00 1111 HA N()I permissiondHRB.
! •
""'"" ...... PROJECTDIRECTORIGIAMe0c IX/AN : CHIEFDESIGNERIa-io tt11eM Tii1£T KE: : Bin ve nQ' khOng auqc ph6p ar. d1o11g dllCI mQI hlrll tll)c, ml)I phln hay DRA'MNGNO.IBAN v£ SO :
I2A~ B
REVISION OA" DESCRIPTION ClilEFOFDl!O IDAn bl), mil khOng o!uqc •II' .Dig~ ~IAln bin all. HRB.
PIC-TEC-GRR-WVO-J04-18557-B
"''"' "" NQI DUNG SO'A 001 THl~ICE
"" Cl(JNIGlllETE Alain Bllchereau P.Amaud
~
~
it
i
~ii:
15
ES1 S1 SAB' SA7' SAS'
~ENT
EJ1eu CHINH THANH COT THeP
=--- b9~~w
I!!
~
uw .!:
F %
!I $i
!;l 8
uB
PARAPET
!!!~
STARTER BARS ~A
THANH COT THeP NHO RA ';:
2x20-D12
@150
10
--§ 2x27-D16
@1150
@O
~~
-r--
'i'@,_,_
~~
~
x
.::-!
I
(
->-
t
I
~ -
~
~
~
i.:
@ 2x2- D16
c::
_.____ .____,_ i....___
" ' ' '
11
lLJ i-- -
I
l,j
- ~ J...._,_ ._______ .
DETAILX
CHITl~TX
SCALE: 1/10
TYL!;: 1/10
'
8 0
I
' I
"
I
-Ll
SECTION A-A
M~TCATA-A
SCALE: 1/20
TYLl;:1120
o--~-+-~~-+-~~~~~~~~~~~~~~-+-~~~...._~~...._~~-< Q.IENT:
o--~-+-~~-+-~~~~~~~~~~~~~~-+-~~~...._~~...._~~-< CHOflAuru:
3" 21/11Y11 Upda111d
2A 3004'11 2nd aubml11lon at'lechnlcal dMlgn
A.K
HRBA . K
1C ~8110 A . K
..co
10,..o
..-"'"&
Upda111d
18 2MIBl10 UPDATED A . K HANOI METROPOLITAN RAIL TRANSPORT PROJECT BOARD
!----+---+----------------,.-.K------1----l BAN DI/AN llWNG sA.rllOTHI llANQI1A 31m1110
REVISION DATE
SLrAOOI Nal.Y
Flr"111a»
DESCRIPTION
NQI DUNGWAfJOI
IHIHl!BI'
HIM!
CllllClllBI'
IOI.!
•
SA9 S3 SB9
KEY PLAN
K~ HO~CH CHfNH
SCALE: 1/200
TYLS:1/200
PROJECT IMPLEMENTATION CONSULTANT
11 VAN THl,IC HleN DI,/ AN
SYSTRAS.A
PROJECTDIRECTORGIAMaocDI/AN:
Alain B~cheraau
~$1
52
SA9'
SB9'
SAB'
SB8'
9
~~
@ @)
9ii..t:
REINFORCEMENT SEE DWG.
COT THeP XEM BANve
PIC-TEC-GRR-WVo-.104-18662-B
PIC-TEC-GRR-WVo-.104-18663-B
016@§
SECTION B-B
M~T CAT B-B
FILE NAA1ElTtN e,1,1/£:
DESIGNED BY TH1"1K£:
A. K
CHECKED BYSlll.T:
G. Maur1s
CHIEF~IGNERCll) NHleMTH1£r Ke:
P. Amaud
SCALE TYLE:
FORMATKHO BAN VE:
A1
STAlUS TfNH~G :
Teclmical Oesign
DAlENGAY:
31/01/10
Thil <Rwi'ID mUll:notbe eithlrlOlrled,<q>ied«otl'lll'Wile NP'Odiacl
ln wtdeah P11rtorul8dfor•nr prupmewllhoul:.. prlor'Mltsl
parmlllllonot HRB.
......My_..,.,._......."11 ..... ""'"""-"""iHn'-Y
....~ ...- .........~t~'"""'"""'"""·
SCALE: 1/20
TYLS:1120
NOTES: ~~~~~~~~~~~~~~~~~~~~~~
GHI CHL.f:
1. REINFORCEMENT YIELD STRENGTH: FY=420 MPA.
1. ClldNG El0 CHAY CllA cx:fTTHE'.P :fy--420 Mpa
2. CONCRETE COVER: C=50 MM.
2. Ld P eeTONG e.<oV£c=50 mm
3. FOR PARAPET S"fARTER BARS REFER TO DWG. NO.
3. EJe XEM THANH COT THe!P CHO' GOA LAN CAN XJN XEM BAN ve so
PIC-TEC-GRR-WVO-J00-18803-B TO PIC-TEC-GRR-WVo-.100-18808-B
PROJECT CVAN: HANOI PILOTLIGHT METRO LINE Sedion Nhon•HantiRailway S1ation
TIM:NflOONG sATEJ0THITHIfll~M 1l'HA NQI ElatnN~n · Ga Hi NOi
Tm.ETtNB,l,IVE: NHUE RIVER CROSSING
VU'QT SONG NHUI;:
DECK- SA9'-SB9' - REINF -1/2
BAN W,T cAU. SA9'-SB9' - cOT Tl·H:.P. 1 / 2
DRAl'l1NGNO. BANV£SO:
PIC-TEC-GRR-WVO-J04-18560-B 3A
B.c T1pe No. ~/b~r Total Bend
I
B.c Type l:"o Tol•l Bend
I
B.c Type No:,l~fNb~'.~Tofol llength~hopel Bend
I
hope No. fbar hope
mark ;od of ""'h No Length Code Type Dimensions Shope
"" marO ;od or'""'o No Leng~h
Code Type Dimensions Shope
"" morh ;od of '"'"h No. Code Type Dimensions Shope
"""" memb m•mb Sile memb memb size memb. memb
"" "" "" " "" "" "" " "" "" "" "
002
°" 1 11B 118 3560 00 A=lSIS
= rn D18 1 40 40 3280 15 1 A=1496 B=1l11 [=817
~ 011 D16 1 12 12 1340 51 2 A=10~ B=1&0 [=14l
g
004 D16 1 54 54 3750 00 A=ll9
= m D16 1 2D 2D 6270 15 1 A=J1J4 B=Ol C=lll4
~ 012 D16 1 4 4 1100 21 2 A=90 B=10J [=Ill
IbdI
004 D14 1 20 20 5775 25 1 A=00lB=60l[=S11D=SJSE=4611->4010~ m D16 1 20 20 3710 00 A=l109
=MEAN
;::;
"" A=00lB=00l[=515D=575E=4@4-·4014~ ~'°' D14 1 20 20 !l'l5 25 1 rn D12 1 40 40 3650 15 1 A=11Jl B=565 [=1181
;; - y000 D10 1 40 40 ~~ 15 1 A=l7l B=141 C=1l49
~ m D12 1 40 40 2050 99 1 A=SJO B=149 C=14l4
aMl"a1=10"
000 DB 1 12 12 1130 99 2 A=i9 B=JSI (=J15
n. rn D12 1 40 40 1350 15 0 A=09J B=l97 C=OJJ
cl=550
~
001 D16 1 40 40 4405 99 2 A=l47B=119a-.rn05(=196D=l791-·IB06E=19lf=1~~ m D10 1 40 40 1350 13 1 A=l115
E::::=
;I~
a1=1JS"a1=11"<Xl=108" al=11"«5=1l5" ,
- b n.OB DB 1 80 80 ~ 99 1 A=l19 8=l0D 040 D8 1 4 4 1130 99 2 A=98 B=l51 C=l15
015 D12 1 4 4 990 99 2 A=l70 8=150
IJd 041 D8 1 8 8 1140 99 2 A=IOl B=JSI C=l15
n.
014 D12 1 2 2 1040 99 2 A=lil B=ISO
IJd "' DB 1 8 8 1160 99 2 A=86 B=ll1 C=14D D=l15
n
'"""•-m- """""-011'- '""'"_"'_
Total Lengths and Weights
Number of members 1
Type T Type R BENDING DIAMETERS Imm)
Lengths of standard hooks Imm)~
Total Weight Total Total Weight Tot<il Diameters 6 8 10 12 14 16 18 20 22 25 2B
Diameter Length per unit Weight Length per unit Weight Hooks IDiameters 6 8 10 12 14 16 18 20 22 25
'"'
[kg/ml [kg]
'"'
(kg/ml lkg) (Type 1) 36 48 60 12 84 96 108 120 132 150 224
~
D
6 0 0.222 0.00 Frames
24 32 40 48 56 64 108 120 132 150 224~ IType 21
8 19 0.395 31.16 Anchorages
12 96 120 144 168 192 216 240 264 300~ Hooks
0 0 0 0 0 0 0 0 0 0 0
!Type 1)
10 114 0 617 70.56 (Type 1) D
~
R
@_
Frames
0 0 0 0 0 0 0 0 0 0
12 930 0.888 825.59 Frames
0 0 0 0 0 0 0 0 0 0 0
!Type 2)
~ (Type 2)
14 231 1210 279 51 Anchorages
12 96 120 144 168 192 216 240 264 300
~
599 1.580 946 07 R
(Type 1]
16
Frames~
BAR DIMENSIONS 0 0 0 0 0 0 0 0 0 0
1B 131 2.000 262.40 ITvPe 21
~
20 0 2.470 ODO - THE DIMENSIONS ARE GIVEN ON THE OUTSIDE FIBER OF THE REBAR [SEE BELOW!
~
22 0 2 980 000 - THE TOTAL LENGTHS ARE CALCULATED ON THE BASIS OF THE CENTERLINE nchorages~
!ISO 3766:2004 - METHOD Bl 36 48 60 12 84 96 108 120 132 15025 0 3 650 0.00 !Type 1)
~
- THE BENDING ANGLES ARE GIVEN IN DEGREES
~
D
Frames28 0 4 830 0.00 0 0 0 0 0 0 0 0 0 0~
!Type 2)
32 0 6.310 0.00
rl____~
nchorages~
36 4B 60 12 B4 96 108 120 132 15036 0 7.990 0.00 (Type 1)
~ R
Frames40 0 9.860 0.00 0 0 0 0 0 0 0 0 0 0~
ITv~e 21
~yType T Type R
nchorages
Total Length - Bended: 1174
)f-
(Type 1) 65 65 65 65 65 65 12 80 88 100
Total Length - Straight
D
Frames910 0 0 0 0 0 0 0 0 0 0 0
!Type 2)
Total Length [ml 2084
'--- nchorages
Total Weight - Bended: 1416 • (Type 1] 85 65 65 65 65 65 12 80 88 100
R
FramesTotal Weight - Str<i1ght: 1000 0 0 0 0 0 0 0 0 0 0
Total Weight [kg]: 2415
,, ITvne 2)
Mean Size Imm) GENERAL WEIGHT kg
)!I
Bl
I I
2415
I
'"'""" 011'
"~CA!l•-DTP-
'"""" -m-
~
' CLIENT:
II
PROJECT IMPLEMENTATION CONSULTANT FILENMIEITtN BAN'£: : sr.ALEIrtL(: : STATUSTlNHT~: PRO.ECTIDl/ #.! : HANOI PILOT LIGHT METRO LINE Sectkln NOOn - HlllOI Ralway station
• I CHOEl.Wnr: Tl1 VAA THVC Hll;N DIJ AN PIC-TEC-ORR-WVQ.JIM-1M91-8_2oU!Wa - Technical Design
TU1N WONG sATBO rn1 rnlDlt::M TP HA NOi E>olil1 Nh&i- Ge Hill NOi
~ ~ ~ SYSTRAS.A
DESIGNED BYITlll£'r KE: : FORtMTIKHO eANv£ : DATEINGAY: Tm.EIrt:N BAN v£ :
~ HRB NHUE RIVER CROSSING
'~ A.K A1 31/01110 lll1QT SONG NHUo7
~§ "' "'"'11 2nd submission of lechnlcaldes91 H 3.Maurls
·"'"°'""
!!s 1C ....10 UM•'"' H IG. Maurta
·"'"°'"" CIECKED BYsoAT: Thladr-ingrnJlllnolba-IDar-.d,coplacl<r-rapmcilcad DECK - SA9'-SB9' - REINF - BAR LIST - 1 / 2HANOI METROPOUTAN RAIL TRANSPORT PROJECT BOARD
q 1B ,...,, UPDATE>
~·
jG. Mauria
"·""'""" G. Mauris i1 whole ar in part <r used far any prl4)Ca wihoU; lh8 priorwrillBn
BAN ~T cAU - SA9'.SB9' -COT TH~P- DANH MVC n<ANH - 1Ii
~ 1A 31/01/10 Fi181 l8al8
~·
3.Mauria
·"'"°'"" BAN OiiAN DUONG sAT00 1111 HA N()I permissiondHRB.
! •
""'"" -· PROJECTDIRECTORIGIAMe0c IX/AN : CHIEFDESIGNERIa-iott11eM Tii1£T KE: : Bin ve nQ'khOng auqc ph6p ar. dlol'IQ dllCI mQI hlrll tll)c, ml)! phln hay DRA'MNGNO.IBAN v£ SO :
I2A~ B
REVISION OAJE DESCRIPTION ClilEFOFDl!O IDAn bl), mil khOng o!uqc •II' .Dig~ ~IAln bin all. HRB.
PIC-TEC-GRR-WVO-J04-18561-B
"''"' "" NQI DUNG SO'A 001 THl~ICE
"" OONIGlllETE Alain Bllchereau P.Amaud
~
~
it
i
~ii:
15
ES1 S1 SAB' SA7' SAS'
~
RE~AR ~DJUSTMENT
DI U CH NH THANH COT THE.P
=-- ~
F~R PT CONFLICT
D IVO'I XUNG EJOT PT t'@
I!!
~
uw .!:
® ~ 10
PARAPET Ct
CD&n
CiLAN CAN
--STARTER BARS 9&Ct
THANH COT THeP NHO RA ';:
-~
t
[
(§) 2x2- 016
c::
2x20-D12
Qll150
--- Q 2x31- 016
Z')' @1150
®0
~~
'?@,_,_
N'°
~
x
~
.it==
~ml
~
.......
!r-
~
<i <i
_..... ~
---·- - - - ~ --- -
DETAILX
CHI Tli;_T X
SCALE: 1/10
TYLI;: 1/10
€fCt
.....,,
t:?&Ct
..........
9---
I -
-J_
0 n
9 @
Ct
:e~
....,,
~-
!g 'i'i.
""
,_.... ..... ""...
'----.J L.___J
8 @
= =~~ _,"'";'@, ~@,
= =N
N
$SECTION A-A
MAT CATA-A
SCALE: 1/20
TYLl1.:1120
o----+----+----------------+----+---+-----< Q.IENT:
CHOflAu 11:
>---+----+----------------+----+---+-----<
3" 21/11Y11
2A 3004'11 HRBUpda111d A.K
2nd aubml11lon at'lechnlcal dMlgn A . K
n
®
!8,_
<;:IL
....
DD
00
~
C>
I..,......
...,,.,.
'""..,.,,
..-......
•
SA9 S3 SB9
KEY PLAN
Ki;_ HO~.CH CHiNH
SCALE : 1/200
TYLl;:1/200
016
PROJECT IMPLEMENTATION CONSULTANT
11 VAN THl,IC HleN DI,/ AN
SYSTRAS.A
F % 1C ~8110
!I $i
18 2MIBl10
!;l 8
Upda111d A. K
1--=--i;;;=-"--+-"u"'PD,t;=JED;...__ _ _ _ _ _ _ _ _ _ _ _"-,."".K"----==-.;..;..;;;=--1 HANOI METROPOLITAN RAIL TRANSPORT PROJECT BOARD
u 1A 31m1110
REVISION DATE
B SLrAOOI Nal.Y
F1m -. " ·K BAN 011AN allONG sA.raO THI HA NQI
DESCRIPTION
NQI DUNGWAfJOI
IHIHl!BI'
HIM!
CllllClllBI'
IOI.!
PROJECTDIRECTORGIAMaocDI/AN:
Alain B~cheraau
n
9
..,g.,,.,,
·-c;-:&
...
FILE NAA1ElTtN e,1,1/£:
DESIGNED BYTH1£TK£:
A. K
CHECKED BYSlll.T:
G. Maur1s
CHIEF ~IGNERCll) NHleMTH1£rK£:
P. Amaud
S3 SA9
SB9
SA8
SB8
' S2 ES2
S3 0
§ @)
~~
9i,.. ~1 ~Jt:
,           )        

(
ETAILX)~D
CH1ntrx
DD017 016 015
~1
~
D
~r
r<r
2x20- 012
@l1SO @-
016®
-014 8t=S--
... 014
8
08 009
SECTION 8-B
MAT CAT B-B
SCALE TYI.Ii:
FORMATKHO BAN VE:
A1
STAlUS TfNH~G :
Teclmical Design
DAlENGAY:
31/01/10
Thil <Rwi'ID mUll:notbe eithlrlOlrled,<q>ied«otl'lll'Wile NP'Odiacl
ln wtdeah P11rtorul8dfor•nr prupmewllhoul:.. prlor'Mltsl
parmlllllonot HRB.
......My_..,.,._......."11 ..... ..,.. .... _m(llpMno.y
....~ ...- .........~t~'"""'""'""""·
SCALE: 1/20
Ti'Ll1.:1120
NOTES: ---------------------~
GHI CHL.f:
1. REINFORCEMENT YIELD STRENGTH: FY=420 MPA.
1. ClldNG El0 CHAY CllA cx:fTTHE'.P :fy--420 Mpa
2. CONCRETE COVER: C=50 MM.
2. Ld P eeTONG e.<ov£c=50 mm
3. FOR PARAPET S"fARTER BARS REFER TO DWG. NO.
3. EJE. XEM THANH COT THe!P CHO' GOA LAN CAN XJN XEM BAN VE SO
PIC-TEC-GRR-WVO-J00-18803-B TO PIC-TEC-GRR-WVO-J00-18808-B
PROJECT CVAN: HANOI PILOTLIGHT METRO LINE Sedian Nhon•HantiRailway S1atial
TIJY£N flOONG sATElOTHITHIfll~M TPHA NQI Batn N~n · Ga Hi NOi
Tm.ETtNllMIVE: NHUE RIVER CROSSING
VU'QT SONG NHUI;:
DECK- SA9-SB9 - REINF - 2 / 2
BAN ~T cAU - SA9-SB9 ·COT THi:P - 2 / 2
DRAl'l1NGNO. BANVESO:
PIC-TEC-GRR-WVO-J04-18564-B 3A
Boe T1pe f:'o Total L thlShape Bend
I
Boe Type l:"o Totol hope Bend
I
Boe T1pe No ~"fNbo''.~To~al ILen thlshapel Bend
I
~o fbor No fbar
Lengfhmark
'"" of ""'h No '"9 [ode Type D1menmns Shope
"" mark
'"" of mmo No Code Type D1mens1ons Shape
"" mar•
'"' of ""'h No. g [ode Type Dimensions Shape
""s11e memb memo me memb memb Sile memb memb
" " " " '' " '' " '' '' " ""
n001 D12 1 11B 118 3560 OD AdSIS
= on D12 1 2 2 92D 99 2 A=151B=14l(=1SlD=1SDE=11lf=l4lU=l8SD., m DB 1 B B 1160 99 2 A=80 BdSI (=14a D=l2S
<Xl=11·<X1=10i"al=90.a4=9i"a5=71·a6= AE
004 D16 1 62 62 3750 00 A=l19
= ,,, D1B 1 40 40 3280 15 1 A=1496 B=1l71 (=801
~ rn D16 1 12 12 1340 51 2 A=16D B=1&~ [=14l
g
008 D14 1 20 20 5775 25 1 A=00lB=ODJ[=515D=SJSE=4611->01D~ m D18 1 20 20
MEAN
6270 15 1 A=l134 8=63 C=JIJ4
~ 011 D18 1 4 4 1100 21 2 A=49~ B=1~l [=4BJ
IbdI·~ ·~ -·~·
'°' D14 1 20 20 5775 25 1 A=00l8=6Dl[=515D=575E=4604-,4014~ m D16 1 20 20 3710 00 A=l709
=MEAN
·~ ·~ -·~·
'°' D10 1 40 40 1520 15 1 A=lll B=l45 C=1l51
~ rn D12 1 40 40 3650 15 1 A=1012 B=565 [=lrnl
~
009 D8 1 12 12 1130 99 2 A=i9 B=JSI l=l15
IF m D12 1 40 40 2050 99 1 A=SJQ B=14i C=14l4
~aMl"a1=10"
"" D16 1 40 40 4405 99 2 A=llJB=mO->llO>C=190D=IJ91->llO&E=29lf=1~ 0'6 D12 1 40 40 1350 15 0 A=69l B=l97 C=61l
~MEAN ~1=1JS' ~2=71"al=108' ~•=11"aS=1lS' , cl=SIO
·~ ·~ -·~·
°" D8 1 80 80 530 99 1 A=l19 B=lO~
6 m D10 1 40 40 1350 13 1 A=1115
r==
015 D12 1 8 8 990 99 2 A=l10 B=ISO
Ikd 040 D8 1 4 4 1130 99 2 A=98 B=l51 C=l15
IF
018 D12 1 2 1 950 99 1 A=l>O B=l50
Ikd 041 D8 1 8 8 1140 99 2 A=107 B=l51 C=l15
IF
"""'•-OT>- "'""•-011'- "'"""-01>-
c c
Total Lengths and Weights
Number of members 1
Type T Type R BENDING DIAMETERS (mm)
~
Lengths of standard hooks Imm)
Total Weight- Total Total Weight- Total Diameters 6 8 10 12 14 16 18 20 22 25 28
Diameter Length per unit Weight Length per unit Weight Hooks IDiameters 8 8 10 12 14 18 18 20 22 25
,,, 11-g/ml 11-g) ,,, [kg/ml (kgl [Type 11 36 48 8D 12 84 96 108 120 132 150 224
~
D
6 0 0.222 0.00 Frames
24 32 40 48 56 64 108 120 132 150 224~
!Type 2]
8 10 0 395 31.16 l"nchorages
12 96 120 144 188 192 218 240 284 300
~ Hooks
0 0 0 0 0 0 0 0 0 0 0
[Type 1)
10 115 0617 70.83 [Type 1) D
~ R
@_
Frames
0 0 0 0 0 0 0 0 0 0
12 933 0.888 828 82 Fr;ime5
0 0 0 0 0 0 0 0 0 0 0
(Type 21
~
[Type 2)
14 231 1210 279.51 ~nchorages
12 96 120 144 188 192 218 240 284 300
~
629 1.5BO 993.47 R
(Type 1)
16
Frames~
BAR DIMENSIONS 0 0 0 0 0 0 0 0 0 0
18 131 2 000 262 40 (Tv~e 21
~
20 0 2 470 000 - THE DIMENSIONS ARE GIVEN ON THE OUTSIDE FIBER OF THE REBAR ISEE BELOW]~
22 0 2 980 000 - THE TOTAL LENGTHS ARE CALCULATED ON THE BASIS OF THE CENTERLINE flnchorages~
(ISO 3766:2004 - METHOD Bl 36 48 80 12 84 96 108 120 132 15025 0 3 850 000 [Type 1)
~
4 830 - THE BENDING ANGLES ARE GIVEN IN DEGREES
(L
D
Frames28 0 000 0 0 0 0 0 0 0 0 0 0~ !Type 21
32 0 6.310 0.00
~
'~ fnchorages
36 48 80 12 84 96 108 120 132 15038 0 7 990 0.00 ,, !Type 1)
~ R
Frames40 0 9.860 0.00 0 0 0 0 0 0 0 0 0 0~
ITvoe 21
~ .Type T Type R
flnchorages
Total Length - Bended: 1178
;tf-
[Type 1) 65 65 65 65 65 65 12 80 88 100
Total Lengt-h - Straight-.
D
Frames940 a 0 0 0 0 0 0 0 0 0 0
Total Length Im] 2118
!Type 21
• '--- fnchorages
65 65 65 65 65 65 12 80 88 100Total Weight - Bended· 1419 !Type 1)
R
FramesTotal Weight - Straight 1048 0 0 0 0 0 0 0 0 0 0
Total Weight lkg): 2466
,, ITvoe 21
Mean Size [mml GENERAL WEIGHT kg
V(I
131
I I
2466
I
"'''"""'1' "''"[)o-011'- """""-011'-
~
' CLIENT:
II
PROJECT IMPLEMENTATION CONSULTANT FILENMIEITtN BAN'£: : sr.ALEIrtL(: : STATUSTlNHT~: PRO.ECTIDl/#.! : HANOI PILOT LIGHT METRO LINE Sectkln NOOn - HlllOI Ralway station
~ I CHOEl.Wnr: Tl1 VAA THVC Hll;N DIJ AN PIC-TEC-ORR-WVQ.JIM-1MlllMl_JIA.DWa - Technical Design
TU1N WONG sATBO rn1 rnlDlt::M TP HA NOi E>olil1 Nh&i- Ge Hill NOi
~ ~ ~ SYSTRAS.A
DESIGNED BYITlll£'rKE: : FORtMTIKHO eANv£ : DATEINGAY: Tm.EITtN BAN'£: :
~ HRB NHUE RIVER CROSSING
'~ A.K A1 31/01110 lll1QT SONG NHUo7
~§ "' "'"'11 2nd submission of lechnlcal des91 H 3.Maurls
·"""'""
!!s 1C ....10 UM•'"' H IG. Maurta
·"""'"" CIECKED BYsoAT: Thlad-ngrnJlllnolba-IDal-.d,coplacl<r-rapmcilcad DECK - SA9-SB9 - REINF - BAR LIST -1 I 2HANOI METROPOUTAN RAIL TRANSPORT PROJECT BOARD
q 1B ,...,, UPDATE>
~·
jG. Mauria
"·"""'"" G. Mauris i1 whole ar in part <r used far any prl4)Ca wihoU; lh8 priorwrillBn
BAN ~T cAU -SA9-SB9 -COT TH~P- DANH Ml,IC TI-tANH -1 /
~ 1A 31/01/10 Fi181 l8al8
~·
3.Mauria
·"""'"" BAN OiiAN DUONG sAT00 Tiii HA N()I permissiondHRB.
! •
""'"" -· PROJECTDIRECTORIGIAMe0c IX/AN : CHIEFDESIGNERIa-iott11eM Tii1£T KE: : Bin ve nQ' khOng auqc ph6p ar. d1o11g dllCI mQI hlrll tll)c, ml)I phln hay DRA'MNGNO.IBAN'£: SO :
I2A~ B
REVISION
"" DESCRIPTION ClilEFOFDl!O IDAn bl), mil khOng o!uqc •II' .Dig~ ~IAln bin all. HRB.
PIC-TEC-GRR-WVO-J04-18565-B
"''"' "" NQI DUNG SO'A 001 THl~ICE
"" Cl(JNIGlllETE Alain Bllchereau P.Amaud
~
~
i
I!!
~
t ui w .!:
F %
!I $i
!;l 8
~ uii: B
15
ES1 S1
=---
PARAPET
""....,,
STARTER BARS ~i.
THANH COT ™E.P NHO RA >CN
2x20-D12
11'150
10 -9
o--~-+-~~-+-~~~~~~~~~~~~~~-+-~~~...._~~...._~~--< Q.IENT:
o--~-+-~~-+-~~~~~~~~~~~~~~-+-~~~...._~~...._~~--< CHOflAunr:
3" 21/11Y11 Upda111d A.K
2A 3004'11 2nd aubml11lon at'lechnlcal dMlgn A . K
1C ~8110 A . K
~g
·-.....
ca)
SECTION A-A
MAT CATA-A
SCALE: 1/20
TYLl;:1/20
HRB
Upda111d
18 2MIBl10 UPDATED A . K HANOI METROPOLITAN RAIL TRANSPORT PROJECT BOARD
!----+---+----------------,.-.K----f----1-----l BAN DI/AN llWNG sA.rllOTHI llANQI1A 31m1110
REVISION DATE
SLrAOOI Nal.Y
Flr"111a»
DESCRIPTION
NQI DUNGWAfJOI
IHIHl!BI'
HIM!
CllllCIDBI'
IOI.!
KEY PLAN
Ki; HOJ;.CH CHiNH
SCALE : 1/200
TYLI0:1/200
.,g
co
·-~·
M3-D16 Q
[Ql150 ~
•PROJECT IMPLEMENTATION CONSULTANT
Tl1 VAN lHl,IC HleN DI,/ AN
SYSTRAS.A
PROJECTDIRECTORGIAMaocDI/AN:
Alain B~cheraau
FILE NAA1ElTtN e,l,i/£:
DESIGNED BYTH1£TK£:
A. K
CHECKED BYSlll.T:
G. Maur1s
CHIEF ~IGNERCll) NHleMTH1£rK£:
P. Amaud
SCALE TYLE:
SA9 S3 SB9'
@) @)
~i ;;f ;;f
--ll--ll---41---11----lll--ll----11.--ll--ll--..i&--"-I~2o..::•:..c13,_-_,,0-'-'12~ 1()36 -
I [Ql150 ~
I
I
1++--++--++---+f---fl---*--ll--fl--lf-ll-*--++--+ll-+l ----'0~1~6 (ij})§
DD :~ l-*.....,,--!l--!r-+--H--++--11--+-ll-+l--I+--++-':
D ~1L-liliiia111~a:0
~14
~s____J

0 14 8 ____J
 - -- ---- - - -( DB 8
(~
@ SECTION 8-B
MAT CAT B-B
STAlUS TfNH~G :
Teclmical Design
"scALE : 1/20
TY Li;:1/20
NOTES: ~~~~~~~~~~~~~~~~~~~~~~
GHI CHL.f:
1. REINFORCEMENT YIELD STRENGTH: FY=420 MPA.
1. ClldNG El0 CHAY CllA cx:fTTHE'.P :fy--420 Mpa
2. CONCRETE COVER: C=50 MM.
2. Ld P eeTONG e.<ov£c=50 mm
3. FOR PARAPET S'fARTER BARS REFER TO DWG. NO.
3. EE. XEM THANH COT THe!P CHO'GOA LAN CAN XJN XEM BAN 111:SO
PIC-TEC-GRR-WVO-J00-18803-B TO PIC-TEC-GRR-WVO-J00-18808-B
PROJECT Ill,/AN: HANOI PILOTLIGHT METRO LINE Sedian Nhon•HantiRailway S1ation
TIJY£NflOONG sATElOTHITHIfll~M 1l'HANQI Elatn N~n · Ga Hi NOi
FORMATKHO BAN VE: DATENGAY:
31/01/10
Tm.ETtNB,l,iVE: NHUE RIVER CROSSING
VU'QT SONG NHUI;:A1
Thil <Rwi'ID mUll:notbe eithlrlOlrled,<q>ied«otl'lll'Wile NP'Odiacl
ln wtdeah P11rtorul8dfor•nr prupmewllhoul:.. prlor'Mltsl
parmlllllonot HRB.
DECK - S3 - REINF - 2 12
BAN W,TcAU -53 • COTTHIOP-2 / 2
......My_..,.,._......."11 ..... ""'"""-"""iHn'-Y
....~ ...- .........~t~'"""'"""'"""·
DRAl'l1NGNO. BANV£SO:
PIC-TEC-GRR-WVO-J04-18568-B 3A
c c
Total Lengths and Weights
No l,fNboar l:'o
Number of members 1
Boe Type To~al
Length
hope Bend
I
Boe Type No fbor Total
Lengfh
hape Bend
I
mar•
'"" of in,.,h No Code Type D1menmns Shape
"" mark
'"" of mmN No Code T1pe D1mens1ons Shape
"" Type T Type R BENDING DIAMETERS Imm)
size m•mb memb size mernO m•mb
"" "" "" " "" "" "" "
~
Di•meter. 4
'
,, ,,
" 10 ,. ,,
"
,;
'" " " '° Lengths of standard hooks Imm]Total Weight Total Total Weight Total
Hool<>Diameter Length per unit- Weight Length per unit- Weight
" " 00
" " % ,,, 1'0 m 100
"' m
'"' "°~
IType1l lo1amo~orsl 6 I B I 10 I 11 I 14 I 10 I rn I 2~ I 12 I 1s I 1B I i1 I io I 40
001 011 1 141 141 2000 00 A=1010
= "" D1B 1 16 16 3280 15 1 A=1496 B=1l11 [=817
'"' [kg/ml [kg]
'"'
(kg/ml lkg) 0
Frame>~
" " '° " 50
" 100 110 m 150
"' 150
'"' "°6 0 0.222 0.00 IType11
~
Hook• nchorago
~ ~
B 51 0 395 22.53 IType1l
0 0 0 0 0 0 0 0 0 0 0 0 0 0 IType11
,, % 110
'"
,., m
"' m m 100 110
"' m
"°006 014 1 13 1l 5760 25 1 A=iOl B=ODJ [=515 0=515 E=461~ rn 016 1 1l 1l 6270 15 1 A=l1l4 B=Ol (=lll4 ~
" 0
10 74 0 617 45.88 Frames 0 0 0 0 0 0 0 0 0 0 0 0 0 0
@_
From" ,, % 1'0
'"
,.,
'" "' m m 100 114
"' m
"°~ lhoe21 1Typ•21
12 101 0.886 622.56 nchorago
0 0 0 0 0 0 0 0 0 0 0 0 0 0
~
= ~ ITypo11
001 014 1 1l 1l 5780 25 1 A=OOJ B=O~J [=511 D=SlS E=4614 Oll 016 1 1l 1l 3710 00 A=l709 14 150 1210 181.84 B
Fram"~
0 0 0 0 0 0 0 0 0 0 0 0 0 0
16 144 1.580 365.33 IT'oe21
~
BS 170 56 BAR DIMENSIONS
~ ~
1B 2 000
°'" 010 1 16 16 1510 15 1 A=11l 8=141 C=1l49 rn 011 1 16 16 3650 15 1 A=1112 B=S6S [=1781 ~
nchorage20 0 2 470 000 - THE DIMENSIONS ARE GIVEN ON THE OUTSIDE FIBER OF THE REBAR [SEE BELOW! 10
" 00
" " % 10B 110 111
'" "" m
"' m
~
~
0
ITyp,11
n 11 0 2 980 000 - THE TOTAL LENGTHS ARE CALCULATED ON THE BASIS OF THE CENTERLINE Fram" 10
" 00
" " % 10B 110 111 100
"" m
"' m
y ~ 1Typo21
000 DB 1 9 9 1130 99 2 A=l9 B=l51 [=l1S m 012 1 16 16 2050 99 1 A=SlO B=149 C=14l4 25 0 3 850 000 1150 3766:2004 - METHOD Bl
nchorago
~ 0 0 0 0 0 0 0 0 0 0 0 0 0 0
al=91" <>1=90" 2B 0 4 830 000 - THE BENDING ANGLES ARE GIVEN IN DEGREES B
ITypo11
~
~ Fram" 0 0 0 0 0 0 0 0 0 0 0 0 0 0
~
l1 0 6.310 0.00
rl ' n,oe21
011 016 1 16 16 4390 99 2 A=147B=1190[=190D=1191E=1HF=147 OJ" 012 1 40 40 1350 15 1 A=09J B=l97 (=ill ~
a1=m·a1=11"al=1Wal=l1"a5=1JS" rl=SIO
l6 0 7 990 0.00 ,,~
40 0 9.860 0.00
nchorago ;; ;; ;; ;; ;; ;;
" BO
'" 100 ,,, ,,, 1C< 100
6 t=::=i
~
----- ,tr- 0
1Typo11
OB OS 1 56 56 5l0 99 1 A=119B=l00 m 010 1 16 16 1350 13 1 A=l215
~lf
Fram" ;; ;; ;; ;; ;; ;; n BO
"" 100 ,,,
"" "' '"o(Type21
Ikd
Type T Type R
.......__ n<horage 0 0 0 0 0 0 0 0 0 0 0 0 0 0
n 1Type11
" Fram"010 011 1 6 6 990 99 2 A=110B=150 040 DB 1 3 l 1130 99 1 A=98 B=l51 C=l15 Total Length - Bended: 780
IT•0 ,21
0 0 0 0 0 0 0 0 0 0 0 0 0 0
Total Lengt-h - Straight- rn a
011 1 1 2 950 99 2
Ikd DB 1 6 6 1140 99 1
n Total Length Im] 1312
014 A=150B=150 041 A=l01 B=l51 [=J15
•Total Weight - Bended 914
n Total Weight - Straight· 506
011 012 1 2 2 920 99 2 A=151B=l4J[=l5lD=llOE=ll9F=14lG=111D.. 042 D" 1 6 6 1160 99 2 A=80 B=ll1 C=140 D=l15 Total Weight lkg): 1429
,,
a1=71•a1=10B•o.i=90'a4=90"«1=11'a0= , ,
Mean Size [mml GENERAL WEIGHT kg
VII
1ll
I I
1429
I
'"""•-m- """[)o-011'-
""'"""'!'
''"'""" -011'- ''""''"'-"'-
~
' CLIENT:
II
PROJECT IMPLEMENTATION CONSULTANT FILENMIEITtN BAN'£: : sr.ALEIrtL(: : STATUSTlNHT~: PRO.ECTIDl/ #.! : HANOI PILOT LIGHT METRO LINE Sectkln NOOn - HlllOI Ralway station
~ I CHOEl.Wnr: Tl/ VAA THVC Hll;N DIJ AN PIC-TEC-ORR-WVQ.JIM-1MllMl_JIA.DWa - Technical Design
TU1N WONG sATBO rn1 rnlDlt::M TP HA NOi E>olil1 Nh&i- Ge Hill NOi
~ ~ ~ SYSTRAS.A
DESIGNED BYITlll£'r KE: : FORtMTIKHO eANv£ : DATEINGAY: Tm.EITtN BAN v£ :
~ HRB NHUE RIVER CROSSING
'~ A.K A1 31/01110 lll1QT SONG NHUo7
~§ "' "'"'11 2nd submission of lechnlcaldes91 H 3.Maurls
·"'"°'""
!!s 1C ....10 UM•'"' H IG. Maurta
·"'"°'"" CIECKED BYsoAT: Thlad-ngrnJlllnolba-IDal-.d,coplacl<r-rapmcilcad DECK-S3 - REINF - BAR LIST-2 I 2HANOI METROPOUTAN RAIL TRANSPORT PROJECT BOARD
q 1B ,...,, UPDATE>
~·
jG. Mauria
"·"'"°'"" G. Mauris i1 whole ar in part <r used far any prl4)Ca wihoU; lh8 priorwrillBn
BAN M"'-T cA.U - 53 -COT TI-l~P - DANH MVC TI-IANH - 212
~ 1A 31/01/10 Fi181 l8al8
~·
3.Mauria
·"'"°'"" BAN OiiAN DUONG sAT00 1111 HA N()I permissiondHRB.
! •
""'"" ...... PROJECTDIRECTORIGIAMe0c IX/AN : CHIEFDESIGNERIa-iott11eM Tii1£T KE: : Bin ve nQ' khOng auqc ph6p ar. d111g dllCI mQI hlrll tll)c, ml)I phln hay DRA'MNGNO.IBAN v£ SO :
I2A~ B
REVISION OA7E DESCRIPTION ClilEFOFDl!O IDAn bl), mil khOng o!uqc •II' .Dig~ ~IAln bin all. HRB.
PIC-TEC-GRR-WVO-J04-18569-B
"''"' "" NQI DUNG SO'A 001 THl~ICE
"" Cl(JNIGlllETE Alain Bllchereau P.Amaud
~
~
~
I!!
~
t ui w .!:
F %
!I $i
!;l 8
~ uii: B
15
ES1 SAB' SA7' SAS'
=----- ~
-~ @ ® 1@ @
PARAPET N
S!~ N::ilCi
~·
9i.c:i t?!
"'N "N
~
@
3" 21111r11 Updatlld A.K
2A 30KM/11 2nd •ubmll1lon oflllchnlcal daolgn A.K
10 D1111r!D Updatad A . K
~
~
n @0... 5': ~~
9i. ~g ,..t?!
·-,.,., I!:!
'------J
9
'------J
0
-4':i: o4':i:
~-
9i&
t?! c:i
'&SECTION A-A
MAT CATA-A
"scALE : 1/20
Ti'Li;:1/20
HRB
1C ~B/1D Updatad A . K
18 2Ml&'ID UPDATED A . K
1--=--i;:;=..;.:;...-+-"==--------------+-;;.;.:;...---1===-+.;.;==---1 HANOI METROPOLITAN RAIL TRANSPORT PROJECT BOARD
1A 31m1/1D Fl..tilaJll
REVISION DATE
SLrAOOI Nal.Y
A . K
DESCRIPTION IHIHl!BI'
NQI DUNGWAfJOI HIM!
CllllClllBI'
IOI.!
BAN DI/AN llWNG sA.ra0 THI HA NQI
SA9 S3 SB9
KEY PLAN
K~ HO~CH CH[NH
n
9
..,ocg
·-c;:&,.,
@
.o:il
9i.t?!
•
@
SCALE : 1/200
l'1' Li;:11200
PROJECT IMPLEMENTATION CONSULTANT
Tl1 VAN THl,IC HleN DI,/ AN
SYSTRAS.A
PROJECTDIRECTORGIAMaocDI/AN:
Alain B~cheraau
n
@
85,_
c;:a...,
2x13-D16 f'iWi~
@l15D '.'.../
FILE NAA1ElTtNBAN/£:
DESIGNED BYTHli;rK£:
A. K
CHECKED BYSlll.T:
G. Maur1s
CHIEF ~IGNERCll) NHleMTH1£r Ke:
P. Amaud
ES2
er~NO. 1 &2 IS COMING FROMABUTMENT THROUGITTTHE SEGMENT.
REFER DWG. NO. PIC-TEC-GRR-WVO-J04-18593.S
1ES
ES2
001
---
~ ~S1 SA9'
S2 SB9'
~      1 ~
.-' ¥ -~ _- - -.,
' ' ' '  
I 2x13- D12
I @1150 @)-
I
I
D16 (§' I
I
I
I
I
I
I
I D14
s- -
·-
' D14
85] 5[         _  __ - -' D16
@)
SCALE TYLE:
FORMATKHO BAN VE:
A1
STAlUS TfNH~G :
Teclmical Design
DATEINGAY:
31/01/10
Thil <Rwi'ID mUll:notbe eithlrlOlrled,<q>ied«otl'lll'Wile NP'Odiacl
ln wtdeah P11rtorul8dfor•nr prupmewllhoul:.. prlor'Mltsl
parmlllllonot HRB.
......My_..,.,._...,,,ng.......,......_m(ll,..,,t.y
.... ~ ... - ......... ~f....YGnb6n cOo HRB.
SECTION B-B
M~T CAT B-B
SCALE: 1/20
TYLIS:1/20
NOTES: ~~~~~~~~~~~~~~~~~~~~~~
GHI CHL.f:
1. REINFORCEMENT YIELD STRENGTH: FY=420 MPA.
1. ClldNG El0 CHAY CllA cx:fTTHE'.P :fy"-420 Mpa
2. CONCRETE COVER: C=50 MM.
2. Ld P eeTONG e.<ov£c=50 mm
3. FOR PARAPET S'fARTER BARS REFER TO DWG. NO.
3. EE. XEM THANH COT THe!P CHO'GOA LAN CAN XJN XEM BAN 111:SO
PIC-TEC-GRR-WVO-J00-18803-B TO PIC-TEC-GRR-WVO-J00-18808-B
PROJECT CVAN: HANOI PILOTLIGHT METRO LINE SediDn Nhon•HantiRailway S1atiCln
TIJY£NflOONG sATEJ0THITHIe1eMTPHANQI Batn N~n · GaHi NOi
Tm.ETtNBAN1£: NHUE RIVER CROSSING
VU'QT SONG NHUI;:
DECK- 51-52 - REINF-2 / 2
BAN ~TcAU-8 1 -82 • COTTHi:P-2 / 2
DRAl'l1NGNO. BANV£SO:
PIC-TEC-GRR-WVO-J04-18572-B 3A
c
Total Lengths and Weights
f:'o L thlShape
I
l:"o
I
Number of members 1
"" T1pe No fbor Total Bend
"" Type No fbar Totol
Lengfh
hope Bend
mark
'"" of ""'h No '"9 [ode Type Dimensions Shape
"" mark
'"" of mmh No Code Type D1mens1ons Shope
"" Type T Type R
size memb mmO size mernb memb
" " " " '' '' '' "
~
Total Weight Total Total Weight Total
~
Diameter Length per unit Weight Length per unit Weight
004 D14 1 13 13 5780 25 1 A~OOl B~6~l C~S15 D~SJS E~4611
~ m D16 1 13 13 6270 15 1 A~lll4 B~Ol C~l1l4
,,, [kg/ml [kgl ,,, Ikg/ml [kg]
~
6 0 0.222 0.00
~
~ = 8 51 0 395 22.53
001 D14 1 13 13 5780 25 1 A~OOl B~O~l [~515 D~SJS E~461• m D16 1 13 13 3710 00 Aol109 ~
10 14 0 617 45.BB
~
11 114 0.888 189.62
~ ~
~
,,, DlO 1 16 16 1510 15 1 Aolll Bol41 Co1349 034 D11 1 16 16 3650 15 1 Ao1011Bo505[olJll 14 150 1210 181.84
~
16 311 1.580 566 21
n. ~
IJ::d>
18 85 2 000 170 56
000 DO 1 9 9 1130 99 1 A~99 BdSI C~l1S m D11 1 16 16 2050 99 1 A~SlO B~l49 C~14l4 ~
«1~91' ~z~90•
10 0 2 470 000
~
11 0 2 980 000
, . ~
~
0 3 850 0 00910 D16 1 13 13 9780 99 1 A=l4J B=4011 (=139 0=4014 E=135 f=lt-,"
°'" D11 1 40 40 1350 15 1 A=69l Bd91 [=6Jl 15
a1=1JS"<>Z=118"<>l=1Z"<>•=11"<>5=1l5" rl=Sli
~
18 0 4 830 0 00
' ~
'
E::::=i
31 0 6J10 D.00
011 D16 1 16 16 4390 99 1 A=llJ 8=1191 [=190 D=l791 E=1H F=141 m D10 1 16 16 1350 13 1 A=1115 ~
36 0 7 990 D.00<X1=1JS"<XZ=71"aM03"<>>=71"a5=1J5" ~
6 n. 40 0 9.860 D.00~
°" DB 1 56 56 530 99 1 A=l19 BdO~ m DB 1 3 3 1130 99 1 A=98 B=l51 [=J15
Ikd n. Type T Type R
°" D11 1 4 4 990 99 1 A=l10 B=l50 0'1 D8 1 6 6 1140 99 1 A=101 B=l51 C=l15 Total Length - Bended: 903
Total Length- Straight. 4B
D11 1 1 1 1090 99 1
Ikd D8 1 6 6 1160 99 1
ft Total Length [ml 951
016 A=l9J 8=168
°" A=iO 8=l51 C=14~ D=l15
Total Weight - Bended· 1122
Total Weight - Straight 16
"31
°'" 1 16 16 3280 1S 1 A=1490 B=ZJ71 [=IQI
~ Total Weight [kg]: 1197
Mean Size Imm] GENERAL WEIGHT kg
I
14 3
I I
1197
I
""'"'"-OTP- '"""" -011'-
""'"""'"'
c
BENDING DIAMETERS Imm)
Diame~ers 4
"
10 11 14 16
'" 10
" i;
'" 3, 34 40 Lengths of standard hooks Imm)
Hooks
ITyp' 11 34
'" 40 11
"' %
'°" 1'0 131 140 1'4 1;4
'"" 310 I Diame~ors I o I BI 1a 111I14 I 10 I rn I 20 I 11 I 1sl 1al i1 I io I 4o
0
Fram"
(Type 1:)
" 3, 40
'" 54
" 19" 1'0 m 1;0
"' ,;4
'"" 3'0
Hook• 0 0 0 0 0 0 0 0 0 0 0 0 0 0 nchorago
" %
"° '" 16e
"' "' m m
"° m
'"' "' '"°•
!Typo 11
0
ITyp,11
Frornos
" "
0 9
"
0
"
0
"
9 0
"
0 0
@_
Fram.,
" %
"° '" 16e
"' "' m m
"° m
'"' "' '"°ihoe21 1Type11
nchorago
9 0 0 9 0 0 0 0 0 0 0 0 0 0ITypo11
0
Fram••
(Woe 11 0 0 0 0 0 0 0 0 0 9 0 0 0 0
BAR DIMENSIONS
- THE DIMENSIONS ARE GIVEN ON THE OUTSIDE FIBER OF THE REBAR [SEE BELOW!
nchorage
" '" 40 11
"' %
'°" 1'9 m
'" "' "' '" '"ITyp,11
~
0
Fram.,-THE TOTAL LENGTHS ARE CALCULATED ON THE BASIS OF THE CENTERLINE
" '" 40 11
"' %
'°" "" m 1;0 16e
"' ,16 m
[ISO 3766:2004 - METHOD Bl
1Typo21
nchorago
0 0 0 0 0 0 0 0 0 0 0 0 0 0
- THE BENDING ANGLES ARE GIVEN IN DEGREES 0
ITypo11
Fram.,
0 0 0 0 0 0 0 0 0 9 0 0 0 0
~
'
(Woe 11
., l"nchorage 4; 4; 4; 4; 4; 4; 11
"° "" 100
"' "" '" ,40
Jt-
1Type11
0
Fram.,
~ >
(Typell 4; 4; 4; 4; 4; 4;
" "° "" 100
"' "' '" ,,0
- l""'horage 0 0 0 9 0 0 0 0 0 0 0 0 0 01Type11
• Frames
1Tvoe21 0 0 0 0 0 0 0 0 0
"
0 0 0 0
a
•
•;
';i__
'"""'"•-DTP- ,,,.,.,._.,,_
~
' CLIENT:
II
PROJECT IMPLEMENTATION CONSULTANT FILENMIEITtN BAN v£ : sr.ALEIrtL(: : STATUSTlNHT~: PRO.ECTIDl/ #.! : HANOI PILOT LIGHT METRO LINE Sectkln NOOn - HlllOI Ralway station
~ I CHOEl.Wnr: Tl/ VAA THVC Hll;N DIJ AN PIC-TEC-ORR-WVQ.JIM-1Bli7Ml_JIA.DWa - Technical Design
TU1N WONG sATBO rn1 rnl Dlt::M TP HANOi E>olil1 Nh&i- Ge Hill NOi
! ~ ~ SYSTRAS.A
DESIGNED BYITlll£'rKE: : FORtMTIKHO eANv£ : DATEINGAY: Tm.EITtN BAN v£ :2A
'''""' 2nd 1ubmi11ion of technical d811ign
~·
3.Mauria ........ HRB NHUE RIVER CROSSING
'~ A.K A1 31/01110 lll1QT SONG NHUo7
~§ '" 01/1Cll10
""""'"' H 3.Maurls ........
!!s ''
,...,, UM•1"d H IG. Maurta ........ CIECKED BYsoAT: Thia dr-ing rnJlll not ... - IDar-.d, coplacl ....- rapmcilcad DECK- S1-S2 - REINF - BAR LIST-2 I 2HANOI METROPOUTAN RAIL TRANSPORT PROJECT BOARD
q ,. ,...,, UPDATE>
~·
jG. Mauria
"·""""' G. Mauris i1 whole ar in part or used for any prl4)Ca wihoU; lh8 priorwrillBn
BAN ~T cA.U -81-82 - COT TH~P - DANH Ml,JC THANH - 212
~ " 31/01/10 Fi181 llal8
~·
3.Mauria ........ BAN OiiAN DUONG sAT00 Tiii HA N()I permissiondHRB.
! •
""'"" ..... PROJECTDIRECTORIGIAMe0c IX/AN : CHIEFDESIGNERIa-iott11eM Tiii~ KE: : Bin ve nQ" khOng auqc ph6p ar. dlol'IQ dllCI mQI hlrll tll)c, ml)I phln hay DRA'MNGNO.IBAN v£: SO :
I2A~ B
REVISION OAJE DESCRIPTION ClilEFOFDl!O IDAn bl), mil khOng o!uqc •II' .Dig~ ~IAln bin all. HRB.
PIC-TEC-GRR-WVO-J04-18573-B8(/AOO
"'" NQI DUNG SO'A 001 THl~ICE
"" ClllNIGlllETE Alain Bllchereau P.Amaud
~=-- ~~ ~
y
7----
N
~ ~
D D r=n D
,=,--,
~I , I I I I
I I "TR'" T fT I
I
I I
I I
I
I I
I
I I
I
18
20~ ,-----i 120 I ......h I I I
21 Ll.1a.JJ 21
I I.
o'b) 7078 Q
@ D16 ...._,
I 18
:;e 0 :;e I
~~@ 20~ ,-----i 120
~ D16 '
Ir "Iii I ~8 21 Ll.1a.JJ 21
' I 020
I I I I I
8 I
-·· c .
I
t J10GJ10 §
D16
' ' D16
8I l
~@)
D16 D16
@)
LlGim I I
?----
I I I I I I
---vI I I
rs D16
I l 020
[055
18
I I I '
I I I I I
20~ ,-----i 120
I 1
I I I I
D16
@
21Ll.1a.JJ21
I!
I I
@ 016
I I I I - I
&--- ~I .
I
8 020
I '
D16
@--- D
r--1 8
I r-- I I ,,--.. •"-- I020
' i.: I 1 v i 18
20~ ,-----i 120
I I
21 Ll.1a.JJ 21
I
I I
I
I I
I I
I I
I
m NOTES:
I J I GHI CHL.f:
4t-
I' I
~
1. REINFORCEMENT YIELD STRENGTH: FY=420 MPA.
~ 1. ClldNG El0 CHAY CllA cx:fTTHE'.P :fy--420 Mpa
L'=J.-1 "'
4
c.-t='-J 2. CONCRETE COVER: C=50 MM.
0
PLAN VIEW 2.Ld PeeTONGe.<o ~ c=50 mm
--9 MAT BANG
3. FOR PARAPETS ARTER BARS REFER TO DWG. NO.
3.EE. XEM THANHCOT THe!PCHO'GOALANCAN XJNXEM BAN VESO
S°CALE: 1/20 PIC-TEC-GRR-WVO-J00-18803-B TO PIC-TEC-GRR-WVO-J00-18808-B
TY Li1::1120
a.JENT:
•PROJECT IMPLEMENTATIONCONSULTANT FILE NAA1ElTtNBAN/£: SCALE TYLE: STAlUSTfNH~G : PROJECT CVAN: HANOIPILOTLIGHT METRO LINE Sedian Nhon•HantiRailwayS1atial
I!! CHOflAu 11: 11 VAN THl,IC HleNDI,/ AN
Teclmical Oesign
~
PIC-TEC-GRlt-Wll'OJD4-1151!D8...»..DW - TIJY£NellONGsATEJOllilTHIe1eMTPHANQI BatnN~n. GaHi NOi
SYSTRAS.A
u 3" 21/11Y11 Upda111d A. K .M1nnto . .laing
HRB
DESIGNED BYTHli;rK£ : FORMATKHO BAN VE: DAlENGAY: Tm.E TtNBANVE: NHUE RIVER CROSSING
2A 3004'11 2nd aubml11lon at'lechnlcal dMlgn A.K n . Mouill ... Arnaud
A. K A1 31/01/10 VU'QT SONG NHUI;:
w .!:
F % 1C ~8110 Upda111d A.K n . Mouill ... Arnaud CHECKED BYSlll.T: DECK- PS1-PS2 - REINF -1/5!I $i
18 2Ml&'IO UPDATED A.K . Mouill ... Arnaud HANOI METROPOLITAN RAIL TRANSPORT PROJECT BOARD Thil <Rwi'IDmUll:notbe eithlrlOlrled,<q>ied«otl'lll'Wile NP'Odiacl
!;l 8 G. Maur1s ln wtdea h P11rt orul8dfor•nr prupme wllhoul:.. prlor'Mltsl
u 1A 31m1110 Fl'"111a» A.K ll. Mouill P. Arnoud BAN DI/AN llWNG sA.ra0 THI HA NQI parmlllllonot HRB. BAN ~T cAU - PS1-PS2 ·COT THi:P - 1 / 5
REVISION DATE DESCRIPTION IHIHl!BI' CllllCIDBI' l>&IJ"lllllill
PROJECTDIRECTORGIAMaocDI/AN: CHIEF~IGNERCll) NHleMlll1£rKe: ......My_..,.,._......."11 ..... ..,.•..,. _m(llpMnt.y
DRAl'l1NGNO.BANV£SO:
I3AB SLrAOOI Nal.Y NQI DUNGWAfJOI HIM! IOI.! otl1t11;M1111!rl! Alain B~cheraau P. Amaud .... ~ ... - .........~t~ ,,.,, ...... HRB.
PIC-TEC-GRR-WVO-J04-18580-B
~
~
"' I!!
I ~
11
ui w g
F %
!I $i
!;l 8
~ uii: B
~~·o ,~8'," , E4 @'°Pr"I 1'°~~·o l ~
T 0@, ; T ~ 21Ll1a.JJ21 T~ 'I T                    i~---+,-r1~-,~, -~,,~,~~-o=+--~~, ,~,-~, '~~!!~/-~/ /-~/ !~!----.---'JI~/-~!/~!-~!l~/-~/1
IL
1r n
II
II
,,
,_ I<-
D
'- f--
~/
"'
016
DETAILX
CHI Tl~TX
016
@) ]
025
<§
04 9
L--...J
014 9
m111111 I 014@
§-;,~~~~~~c==-~~~==~~~~~lt~fl~w]]!~[[[[[[[IJIIIllIIJ[[]]]W7 1lll"UI/ ~~~~010~8 ~
~$ ~= ~ 4 4
-
SECTION 1-1
MAT CAT 1-1
•SCALE: 1/20
TYLS:112D

                  
I
28
F==============J;-~~~~~~11-+--'----"D-'-'16'---(§ f:l
I
8
~10f-~---if--~~~~~~~~~~~~~~~~~~
r,;;;;;, 2x3-016 SECTION 2-2
v @
150
MAT CAT 2-2
-SCALE : 1/20
TY LS:112D
=
016 s NOTES: ~~~~~~~~~~~~~~~~~~~~~
GHI CHL.f:
1. REINFORCEMENT YIELD STRENGTH: FY=420 MPA.
1. ClldNG El0 CHAY CllA cx:fTTHE'.P :fy""-420 Mpa
2. CONCRETE COVER: C=50 MM.
2. Ld P eeTONG e.<ov£c=5D mm
3. FOR PARAPET S"fARTER BARS REFER TO DWG. NO.
3. EJE. XEM THANH COT THe!P CHO'GOA LAN CAN XJN XEM BAN VE SO
PIC-TEC-GRR-WVO-J00-18803-B TO PIC-TEC-GRR-WVO-J00-18808-B
o--~-+-~~+--~~~~~~~~~~~~~_._~~~.._~__..._~___. Q.IENT:
o--~-+-~~+--~~~~~~~~~~~~~_._~~~.._~__..._~___. CHOflAunr:
•
PROJECT IMPLEMENTATION CONSULTANT
Tl1 VAN THl,IC HleN DI,/ AN
FILE NAA1ElTtN e,l,i/£: SCALE TYLE: STAlUS TfNH~G :
Teclmical Design
PROJECT DI,/AN: HANOI PILOTLIGHT METRO LINE Sedion Nhon•HantiRailway S1atial
TIJY£NflOONG sAr EJ0THITHIfll~M TP HANQI Elatn N~n · Ga Hi NOi
3" 21/11Y11 Upda111d A.K .Mowrto LI•.laing
2A 3004'11 2nd aubml11lon at'lechnlcal dMlgn A.K n. Mowrto ... Arnaud
1C ~8110 Upda111d A.K n. Mowrto ... Arnaud
18 2Ml&'IO UPDATED A.K . Mowrto ... Arnaud
1A 31m1110 Flr"111a» A.K ll. Mowrto P. Arnoud
REVISION DATE DESCRIPTION IHIHl!BI' CllllClllBI' l>&IJ"lllllill
SLrAOOI Nal.Y NQI DUNGWAfJOI HIM! IOI.! otl1t11;M1111!rl!
SYSTRAS.A
HRB
DESIGNED BYTH1£TK£ :
A. K
HANOI METROPOLITAN RAIL TRANSPORT PROJECT BOARD
BAN DI/AN llWNG sA.Ta0 THI HA NQI
PROJECTDIRECTORGIAMaocDI/AN:
CHECKED BYSlll.T:
G. Maur1s
CHIEF ~IGNERCll) NHleMlll1£rK£:
Alain B~cheraau P. Amaud
FORMATKHO BAN VE:
A1
DAlENGAY:
31/01/10
Thil <Rwi'ID mUll:notbe eithlrlOlrled,<q>ied«otl'lll'Wile NP'Odiacl
ln wtdeah P11rtorul8dfor•nr prupmewllhoul:.. prlor'Mltsl
parmlllllonot HRB.
......My_..,.,._.....,ng.......,......_m(llpMnt.y
....~ ...- .........~t~'"""'""'""""·
Tm.ETtNB,l,iVE: NHUE RIVER CROSSING
VU'QT SONG NHUI;:
DECK- PS1-PS2 - REINF - 2 / 5
BAN ~T cAU - PS1-PS2 ·COT THi:P - 2 / 5
DRAl'l1NGNO. BANV£so: IPIC-TEC-GRR-WVO-J04-18581-B 3A
~
~
it
i
~ii:
=---
s
®-LONGllJDINAL BAR
THANH c0T THeP DOC
® --
LONGllJDINAL BAR
TliANH OOT THeP DQC
@'
-
@~~@t" fo') '[]y,..o
9c;!i!!
••""N
~•..... I,,, N
~ "' "'0
o o
o
(~"'2 1
. @LONG. BAR .
TliANH OOT THe P DQC
20L~fl20 ~
J@) @
21 l1s...J 21"'0
a
e (]10
~9 012
so @----="'--~~-=
1=""=il=l<l=l="'=*=>l='11='11=,/'='
~15 @)~D_16_--H+-ll-<
~ @)__[JD~16__~=jt:j!tlt!j==j==jt==jj==
@ LONG.BAR
THANH COT THeP DOC
I!!
~
o--~-+-~~+--~~~~~~~~~~~~~_._~~~...._~__....._~___. Q.IENT:
o--~-+-~~+--~~~~~~~~~~~~~_._~~~...._~__....._~___. CHOflAuru:
20r~120
~ 21LLis_JJ21
c;
SECTION A-A
MAT CAT A-A
SCALE: 1120T'1' Li;:1/20
20~~~20
s 21Llls...JJ21
SECTION A'-A'
MAT CAT A'-A'
SCALE: 1/20
T'1'Ll;::1/20
~
0
..Oon,.._
91&
0
N
0
N
0
@) 20~~120
~ 21Llls...JJ21D
-
...CiI
N
•PROJECT IMPLEMENTATION CONSULTANT
11 VAN THl,IC HleN DI,/ AN
SYSTRAS.A
u 3" 21/11Y11 Upda111d
2A 3004'11 2nd aubml11lon at'lechnlcal dMlgn
A. K
HRBA . K
w .!:
F %
!I $i
!;l 8
uB
1C ~8110 Upda111d A . K
18 2Ml&'"IO UPDATED
1A 31m1110 Flr"1 ilaJlt
A . K HANOI METROPOLITAN RAIL TRANSPORT PROJECT BOARD
!----+---+----------------,.-.K---4----+-----l BAN DI/AN llWNG IA.TllOTHI llANQI
REVISION DATE
SLrAOOI N0AY
DESCRIPTION
NQI DUNGWAfJOI
IHIHl!BI'
HIM!
CllllClllBI'
IOI.!
PROJECTDIRECTORGIAMaocDI/AN:
Alain B~cheraau
FILE NAA1ElTtN e,l,i/£:
DESIGNED BY TH1£TK£ :
A. K
CHECKED BYSlll.T:
G. Maur1s
CHIEF~IGNERCll) NHleMTH1£rK£:
P. Amaud
043
~~ "'""- ~
o - 0
o-
-6@., N J, @.,
~
D
~
   ' ' ' ' ' ' ' ' ' 0 , - 18
016 016
04
016016 I ~
I
l016
II
t.
016
I
l . ~
I 016
I
"-
I
= I 016
I
I 025
I
28
@[J
0/
s 20r,----i
120
s 21Llls...JJ21
203@
80
=016
812
~M - 016 I
@ @1150 -SECTION 3 3
MAT CAT3-3
I 2x5- 016
@1150 @)
SCALE TYLE:
FORMATKHO BAN VE:
A1
STAlUS TfNH~G :
Teclmical Design
DATENGAY:
31/01/10
Thil <Rwi'IDmUll:notbe eithlrlOlrled,<q>ied«otl'lll'Wile NP'Odiacl
ln wtdea h P11rt orul8dfor•nr prupmewllhoul:.. prlor'Mltsl
parmlllllonot HRB.
......My_..,.,._.......ng ..... ..,.. .... _m(ll,..,,t.y
.... ~ ... - ......... ~f....YGnb6n cOo HRB.
SCALE: 1/20
T'1' Lf;::1/20
NOTES: ~~~~~~~~~~~~~~~~~~~~~
GHI CHL.f:
1. REINFORCEMENT YIELD STRENGTH: FY=420MPA.
1. ClldNG El0 CHAY CllA cx:fTTHE'.P :fy--420 Mpa
2. CONCRETE COVER: C=50 MM.
2. Ld P eeTONG e.<ov£c=50 mm
3. FOR PARAPET S"fARTER BARS REFER TO DWG. NO.
3. EJE. XEM THANH COT THe!P CHO' COA LAN CAN XJNXEM BAN 111:SO
PIC-TEC-GRR-WVO-J00-18803-B TO PIC-TEC-GRR-WVO-J00-18808-B
PROJECT CVAN: HANOI PILOTLIGHT METRO LINE Sedian Nhon•HantiRailwayS1atiCln
TIJY£NflOONG sATEJ0THITHIe1eMTPHANQI BatnN~n · Ga Hi NOi
Tm.E ~Ne,l,IVE : NHUE RIVER CROSSING
VU'QT SONG NHUI;:
DECK- PS1-PS2 - REINF - 3 / 5
BAN ~T cAU - PS1-PS2 ·COT THi:P - 3 / 5
DRAl'l1NGNO. BANVESO:
PIC-TEC-GRR-WVO-J04-18582-B 3A
~
~
i
I!!
~
t ui w .!:
F %
!I $i
!;l 8
~ uii: B
=---
s-LONGliJDINAL BAR
THANH COT THeP DOC
=---
8
N
0
@-
LONGliJDINAL BAR
THANH COT THeP DOC
-9 012
n
9 @ '
-9 012
c:---@)
4xSx10-010
@l 300
L-~....L.~~-'--~~~~~~~~~~~~~~-4-~~~~~~~~~-1 Q.IENT:
@>
=
="'
9@
L-~....L.~~-'--~~~~~~~~~~~~~~-4-~~~~~~~~~-1 CHOflAuru:
3" 21/11Y11 Upda111d A. K
2A 3004'11 2nd aubml11lon at'lechnlcal dMlgn A . K
-
@ LONG.BAR
THANH COT THl:P DOC
-8
=N Cf>
C?@
~
© L--....J
c§=
="'
9~ -.o= @- "'
~
o -
6@,
N
~ "'c;
@ LONG.BAR
THANH COT THeP DOC
HRB
1C ~8110 Upda111d
18 2Ml&'IO UPDATED
A . K
L-~..J!=~..i....:::t:::=--------------+:,,::..:_ K:._---i:::;..:::=--+.;..:.::=~ HANOI METROPOLITAN RAIL TRANSPORT PROJECT BOARD
1A 31m1110
REVISION DATE
SLrAOOI Nal.Y
Flr"111a»
DESCRIPTION
NQI DUNGWAfJOI
" ·K BAN DI/AN allONG sA.TaO THI HA NQI
IHIHl!BI'
HIM!
CllllClllBI'
IOI.!
SECTION C-C
MATCATC-C
SCALE: 1/20
TI'LS:1/20
L--....J
•
<§
~5;
o -
6@,
N
~
SECTION D-D
MATCATD-D
SCALE: 1/20
IT Li0:1120
PROJECT IMPLEMENTATION CONSULTANT
11 VAN THl,IC HleN DI,/ AN
SYSTRAS.A
PROJECTDIRECTOR GIAMaocDI/AN:
Alain B~cheraau
2x2•6-D16 ®{)(1150
2x2x20-025
81@150
016 ® {)
2x2x20- D2S
@l 50
FILE NAA1ElTtN eAN/£:
DESIGNED BYTH1"1K£ :
A. K
CHECKED BYSlll.T:
G. Maur1s
CHIEF~IGNERCll) NHleMTH1£r Ke:
P. Amaud
SCALETYLE:
FORMATKHO BAN VE:
A1
STAlUS TfNH~G :
Teclmical Design
DATENGAY:
31/01/10
Thil <Rwi'IDmUll:notbe eithlrlOlrled,<q>ied«otl'lll'Wile NP'Odiacl
ln wtdea h P11rt orul8dfor•nr prupmewllhoul:.. prlor'Mltsl
parmlllllonot HRB.
......My_..,.,._.......ng ..... ..,.. .... _m(llpMnt.y
....~ ...- .........~ t ~ ,,.,,..., ...HRB.
@
"'"'- r-
'T@,_,__
N~
N
x
!"!.
D
DETAILX
CHI Tli;Tx
SCALE : 1/10
TI' LI;: : 1/10
NOTES: ~~~~~~~~~~~~~~~~~~~~~~
GHI CHL.f:
1. REINFORCEMENT YIELD STRENGTH: FY=420 MPA.
1. ClldNG El0 CHAY CllA cx:fTTHE'.P :fy--420 Mpa
2. CONCRETE COVER: C=50 MM.
2. Ld P eeTONG e.<o v£c=50 mm
3. FOR PARAPET S"fARTER BARS REFER TO DWG. NO.
3. EJS XEM THANHCOT THe!P CHO' COA LAN CAN XJNXEM BAN VE SO
PIC-TEC-GRR-WVO-J00-18803-B TO PIC-TEC-GRR-WVO-J00-18808-B
PROJECT DVAN: HANOI PILOTLIGHT METRO LINE Sedion Nhon•HantiRailwayS1atial
TIJY£NflOONG SAT EJ0THITHIe1eMTPHANQI Batn N~n · GaHi NOi
Tm.ETtNeAN1£: NHUE RIVER CROSSING
VU'QT SONG NHUI;:
DECK- PS1-PS2- REINF -4 / 5
BAN ~T cAU - PS1-PS2 ·COT THi:P - 4 / 5
DRAl'l1NGNO. BANV£SO:
PIC-TEC-GRR-WVO-J04-18583-B 3A
,(J..0 ~ ~'@'
17
=-- --- .......____ ,-----,
15015@)
8
s' @I @ ® 9 ~
)38N
_,, =
::::~ ~=
~8
81~1
~ o
2~
c"'
0
o~ = ...~ ~@.
N
911. 9i .,,D
911. "D x
.. 5! -i
N ..fC I~
t- ...           I  I  
n...._o~ ~ ~x
.I fC
y1 ~~. ~1
.LI
 .,. u: } ·Y • LI•
r1-
..... u ,re_'<:? f ~o_...n 1y
1;1
~f' ( ::> 0 (', ~
3oc:Jo
~
'
u u " ,,
~
- s 020
l I i I l l
' ' ~
' ~ ~ .
~9
012 "
u u ,. '--------"® 020 I
I
(§)-  l.. ., ~ ' ' ~ ' ~
l l
' ~
' ~ ~ 016
@lII I . j
I~ @)
012
LONGITIJDINAL BAR
w@l 016 ' ..fn ~
THANH COT THE.P DQC 30 0
I]' 1 n. # l.n I
,
[] @
4x10-D16;
l~ :rl(IHOO l
3x2x20-020 ,~  lh  f lh
16 16 132
[@
~
't0 Kl 32( 133
@1150
~ · ~ ) (@) II
, YI 016
(@)
" 025
fs!J!
I
016 ~ ~
l/,
30Wo
0; p
l~x6x5-016
020
@[17
I
16016
@)  dJ
'f II
(@) I 025
SI
rr @
~
= I (al150
I
~. ~
:rl 132
t
;;I .!. 32( 133
I
D1' ~
 /  II
"l/; I
=
1) 11 ~
~- 1qf, 016
§ '=8
016
8
~
&,11
I I
n 010
@) n  " "'I/ = = = ~ f--. h-
= = t= =
j
;~
10NG.BAR
I 4,,""'""0""8 1
- SECTION 4-4SECTION B-8
M~T CAT B-B M~T CAT 4-4
SCALE: 1f20
SCALE : 1f20
TYLJ;:1120
TY Ll;:1120
- NOTES:
GHI CHL.f:
1. REINFORCEMENT YIELD STRENGTH: FY=420 MPA.
1. ClldNG El0 CHAY CllA cx:fTTHE'.P :fy--420 Mpa
2. CONCRETE COVER: C=50 MM.
2.Ld PeeTONG e.<o~ c=50 mm
3. FOR PARAPETS ARTER BARS REFER TO DWG. NO.
3.EE. XEM THANH COT THJ:PCHO'COA LAN CAN XJNXEM BAN 111:SO
PIC-TEC-GRR-WVO-J00-18803-B TO PIC-TEC.GRR-WVO-J00-18808-B
I!!
Q.IENT:
•PROJECT IMPLEMENTATIONCONSULTANT FILE NAA1ElTtNeMi/£: SCALETYLE: STAlUSTfNH~G : PROJECT CVAN: HANOIPILOTLIGHT METRO LINE Sedian Nhon•HantiRailwllyS1atial
~
CHOflAu 11: 11 VAN lHl,IC HleN DI,/ AN
Teclmical Oesign
PIC-TEC-GRlt-Wll'OJD4-1151M-B...»..DW - TIJY£NflOONG sATEJ0llilTHIfll~M TPHANQJ BatnN~n. Ga Hi NOi
u SYSTRAS.A
DESIGNED BYTHi£rK£: FORMAT KHO BAN VE: DAlENGAY:
3" 21/11Y11 Upda111d A.K .M1nnto u..laing
HRB Tm.ETtNilMIVE: NHUE RIVER CROSSING
2A 3004'11 2nd aubml11lon at'lechnlcal dMlgn A.K o . Mou1111 P. Amoud
A. K A1 31/01/10 VU'QT SONG NHUI;:
w g
F % 1C ~8110 Updalad A.K o . Mou1111 P. Amoud CHECKED BYSlll.T:
!I $i HANOI METROPOLITAN RAIL TRANSPORT PROJECT BOARD Thil <Rwi'ID mUll:notbe eithlrlOlrled,<q>ied«otl'lll'Wile NP'Odiacl DECK- PS1-PS2 - REINF - 5/ 5
!;l 8 18 2Ml&'"IO UPDATED A.K . Moulto P. Amoud
BAN DI/AN llWNG sA.ra0 THI HA NQI
G. Maur1s ln wtdeah P11rtor ul8dfor •nr prupmewllhoul:.. prlor'Mltsl
BAN ~T cAU - PS1-PS2 ·COT THi:P - 5 / 5
u 1A 31m1110 FllOilla» A.K JJ. Moulto P. Amoud
parmlllllonot HRB.
PROJECTDIRECTOR GIAMaocDI/AN: CHIEF~IGNERCll) NHleMlll1£rK£:
REVISION DATE DESCRIPTION IHIHl!BI' CllllClllBI' l>&IJ"lllllill
......My_..,.,._......."11 ..... ..,.. .... _m(llpMni.y
DRAl'l1NGNO,BANVESO:
I3AB SLrAOOI Nal.Y NQI DUNGsLrAfJOI HIM! IOI.! otl1t11;M1111!rl! Alain B~cheraau P. Amaud ....~ ...- .........~t~'"""'""'""""· PIC-TEC-GRR-WVO-J04-18584-B
e.. TIJll No.
~ Tahl
length~
B!lld e.. TIJll No. ~'t. Totil
Length
"""'
B!lld e.. TJPI No. ~t Totil
Length ~
B!lld e.. TIJll No. ~~ Tahl
Length
"""
B!lld
1111< Old
" Na. T1pe IJileRSiDRS Shipe RH. 1111< Old
"~... No. Cade TIJll llillensin Shipe R". 1111< Old
".... No. TJPI
- Shape RH. 1111< Old
"~... N• Cade TJPI -.. Shipe RH.
... -- ... -- ... -- ... --- - - -
~ Gd y001 012 1 238 238 10120 00 A=10119 013 016 1 12 12 3850 99 2 A=183 B=1515-•1114 C=1BZO 022 016 1 6 6 2930 99 2 A=791 B=446 C=1166 032 016 1 60 60 2880 21 2 A=809 B=435 C=1139-•Z1'JB
MEAN o:1=80" 0:1=95°0:2=90" MEAN
~"" OnE
-- '"'"' •nE mw•
"'"002 016 1 30 30 1050( 25 1 A=3496 B=3496 C=250 D=250 E=3506
~ 014 016 1 10 10 4415 99 2 A=111 B=2146->1509 C=1820
~ 023 016 1 6 6 3685 99 2 A=714 8=1036-,1365 [=1765
~ 033 016 1 60 60 2860 21 2 A=2218-o1139 B=435 [=791
fhdlMEAN <ll1=72° MEAN 0:1=68° MEAN
~"" on•
-- d
~"" on•
-- d
'"~ one mw•
"'"
003 016 1 30 30 10510 25 1 A=350B B=350B [=314 0=314 E=3494
~ 015 016 1 2 2 6640 21 2 A=1820 B=lD'J2 [=1820 024 016 1 6 6 5845 21 2 A=1815 B=2HZ->200l [=1875 041 018 1 120 120 3350 15 1 A=2602 B=2412 C=775
~MEAN
d
~""
'"'--006 016 1 21 21 5470 21 2 A=1820 B=755-•3056 C=1B20 016 016 1 40 40 3230 11 2 A=l011 B=251
~ 025 016 1 6 6 2880 99 2 A=791 8=400 C=1764
Gd 042 016 1 40 40 6270 15 1 A=l134 8=63 C=l134
~MEAN o:l=9l"o:2=90"
PHllCJ one lmw•
"'"
d d ~ " c
007 016 1 21 21 5470 21 2 A=1a20 B=755-.J056 C=1B20 017 016 1 20 20 1910 21 2 A=191 B=39B C=191 026 016 1 6 6 3460 99 2 A=114 B=B44->1104 C=1165 043 020 1 20 20 7630 99 1 A=1024 8=2823 C=2823 0=1024 , /o
MEAN MEAN 0:1=67° o:1=108" o:2=1"a3=108'
PHllO on• imw•
"'" ~"" GnE
-- d008 016 1 6 6 2755 99 2 A=190 B=159-•170 C=1810
~ 018 016 1 5 5 3530 25 2 A=183 B=183 C=114 0=114 E=2101-•1926 ~ 027 016 1 6 6 5580 21 2 A=1815 B=1111-•2031 [=1815 044 012 1 120 120 2050 99 1 A=530 B=149 C=1434 fl_~
MEAN <>1=89" MEAN MEAN <>1=91' <>2=90"
,____.
PHllO OnE lmw•
"'" ~"" OnE
-- ~"" OnE
-- d009 016 1 6 6 4800 99 1 A=188 B=2230-•Z292 C=1820
~ 019 016 1 9 9 4695 25 2
~ 028 016 1 12 12 4855 21 2 A=18ZO B=1439-•1131 C=18ZO 045 012 1 80 80 3850 15 1 A=2153 8=581 [=1103
~MEAN 0:1=12" MEAN MEAN
PHllO one lmw•
"'"
d
~"" on•
-- ~"" on•
-- d010 016 1 6 6 6620 21 2 A=1820 B=3056 C=1820 A=185-•799 B=7BS-•799 [=779-•79l 0=719-•193 029 016 1 12 12 4855 21 2 A=1B20 B=1131-·1439 C=1820 046 016 1 2 2 3850 15 1 A=2153 B=587 C=1103
~=3169-·3170
MEAN
~"" GnE
-- d011 016 1 12 12 2790 99 2 A=783 B=188-•308 C=18ZO
~ 020 016 1 8 8 3005 99 2 A=191 B=496-•545 C=1766
rid 030 016 1 2 2 4630 21 2 A=922 B=286Z C=922 047 016 1 2 2 3860 15 1 A=229Z B=625 [=1569
~MEAN o:1=BD" MEAN <>1=95" <>2=90°
PHllO OnE lmw•
"'" ~"" OnE
--012 016 1 10 10 2970 99 1 A='J89 B=l07->55J C=1BZO
~ 021 016 1 8 8 3105 99 1 A=193 8=508-·611 C=1190
~ 031 016 1 1 1 4880 DO A=4B'J9 048 012 1 120 120 1350 15 0 A=693 B=397 C=O'J3
~MEAN a1=88" MEAN <>1=17° r1=550
PHllO one lmw•
"'" ~"" on•
--..,,,,._..,_ ,,,.,.._..,_ lrlll£M9 -111'- lrlll£M9 - "'-
~
' CLIENT:
II
PROJECT IMPLEMENTATION CONSULTANT FILENMIEI TtN BAN v£ : sr.ALEIrt L(: : STATUSTlNHT~: PRO.ECTIDl/ #.! : HANOI PILOT LIGHT METRO LINE Sectkln NOOn - HlllOI Ralway station
~ I CHOEl.Wnr: Tl/ VAA THVC Hll;N DIJ AN PIC-TEC-ORR-WVQ.JIM-1MlllMl_JIA.DWa - Technical Design
TU1N WONG sATBO rn1 rnlDlt::M TP HA NOi E>olil1 Nh&i- Ge Hill NOi
~ ~ ~ SYSTRAS.A
DESIGNED BYITlll£'rKE: : FORtMTIKHO eANv£ : DATEINGAY: Tm.EITtN BAN v£ :
~ HRB NHUE RIVER CROSSING
'~ A.K A1 31/01110 Vl1QT SONG NHUo7
~§ "' "'"'11 2nd submission of lechnlcaldes91 H 3.Maurls
·"""'""
!!s 1C ....10 UM•'"' H IG. Maurts
·"""'"" CIECKED BYsoAT: Thladr-ingrnJlllnolba-IDar-.d,coplacl<r-rapmcilcad DECK- PS1-PS2 - REINF - BAR LIST-1I3HANOI METROPOUTAN RAIL TRANSPORT PROJECT BOARD
q 1B ,...,, UPDATE>
~·
jG. Maurie
"·"""'"" G. Mauris i1 whole ar in part <r used far any prl4)Ca wihoU; lh8 priorwrillBn
BAN ~TcAU- PS1-PS2-C0TTH~P- DANH Ml,ICTI-tANH-1 /
~ 1A 31/01/10 Fi18118a111
~·
3.Mauris
·"""'"" BAN OiiAN DUONG BAT 001111 HA N()I permissiondHRB.
! •
""'"" -· PROJECTDIRECTORI GIAMe0c IX/AN : CHIEFDESIGNERIa-io tt11eM Tiii~ KE: : Bin ve nQ" khOng auqc ph6p ar. d1o11g dllCI mQI hlrll tll)c, ml)I phln hay DRA'MNGNO.IBAN v£: SO :
I2A~ B
REVISION OATE DESCRIPTION ClilEFOFDl!O IDAn bl), mil khOng o!uqc •II' oD!g ~ ~IAln bin all. HRB.
PIC-TEC-GRR-WVO-J04-18585-B
"''"' "'" NQI DUNG SO'A 001 THl~ICE
"" Cl(JNIGlllETE Alain Bllchereau P.Amaud
Bir TIP' No. .t Tot~ Shapo llllld Bar TIP' No.
~~T~ ....llllld Bar TIP' No.
~~Tot~ ....llllld Bar TIP' No.
~=
Tot~ lhapo llllld
.... and at
:.:. No. Llngth Cade TIP'
_,. Shape Ru. ..to ;nl of No. F•"' Cade TIP' m...... 5hape Rew. .... ;nl of No. F•"' Cade TIP' -.... Shape Rew. ..ri. and of No. Llngth Cade TIP'
- 5hape Ru.
size
,_ size
,_
- size
,_
- size
-mm mm mm - mm mm mm - mm mm mm - mm mm mm -
i6=i ~ E l049 016 1 40 40 3710 00 A=3709 059 08 1 200 200 630 99 1 A=129 B=400 068 08 1 24 24 1780 99 2 A=399->449 B=351 [=325 081 016 1 12 12 910 99 1 A=548
MEAN
'"'"'IGTIE
~· "'"
1bd~
' " E l050 020 1 20 20 9150 25 1 A=2142 B=2142 C=285 D=285 E=4870 060 016 1 28 28 8960 99 2 . c 011 016 1 24 24 1820 99 2 A=560 B=260 082 016 1 24 24 810 99 1 A=457
"
051 020 1 20 20 6680 25 1 A=664 B=664 [=417 D=41'J E=5l68
~ A=147 B=4004 [=506 D=l'l27 E=SOJ F=147 072 016 1 8 8 1100 21 2 A=490 B=20l C=48l y 083 016 1 4 4 1450 21 2 A=550 B=421 C=550
ciJa1=135' a2=10B" cd=7Z" o:4=7Z" a5=135"
052 020 1 10 10 6160 99 1 A=584 B=5059 [=584
fJd1 061 014 1 40 40 5180 25 1 A=603 B=60l C=575 D=515 E=40J9-•l955~ 075 016 1 12 12 3420 99 2 ob~ 084 016 1 2 2 1540 21 2 A=SSO B=510 [=550
ciJa1=10B" a2=10B" MEAN
" '"'"'ioTIE
~· "'" "
053 016 1 40 40 4750 99 1 A=217 B=266 C=3691 D=l14 E=516
'' 062 014 1 40 40 4965 25 1 A=603 B=603 C=515 D=515 E=3BBJ-,J720 ~ A=14'l B=10'J2 C=205 D=l50 E=940 F=127 G=5l0 H=147
C11=125° C12=55° Ci3=56° 0:4=71° MEAN a1=135° a2=B1" al=1B" a4=B2" a5=B" a6=B2" a7=1l5"
'"=""'~· "'" '
054 010 1 80 80 1350 13 1 A=1215
E I 063 010 1 80 80 1630 15 1 A=113 B=l45 [=1461
~ 076 016 1 12 12 3540 99 2 'o''° eo"% Com HO Co%1 mo Co1'° 00
°
a1=135" a2=81° 0:3=82° 0:4=18° 0:5=90° 0:6=135°
055 025 1 120 120 3255 99 2 A=405 B=270 [=1155-•3121
EbJ1 064 DB 1 4 4 1130 99 2 A=98 B=l51 [=325
~ 017 016 1 4 4 1500 99 2 A=505 B=549 [=504
fboMEAN a1=103"a2=85"
PHllCJ GTll;:
"""' "'"
L.=J ~ fJd1056 016 1 70 70 1550 99 2 A=1B0-·1142 065 08 1 8 8 1140 99 2 A=101 B=351 [=325 018 016 1 4 4 1320 99 2 A=506 B=3'l2 C=50B
MEAN <>1=91°0:2=99°
PHllCJ GTll;:
~· "" •
n Q057 025 1 40 40 7660 99 2 A=255 B=l93 [=J2J9 D=l81 E=3150 F=155 f: 066 08 1 8 8 1160 99 2 A=86 B=l51 [=140 D=315 079 016 1 12 12 1980 99 2 A=450 B=450
a1=ns• a2=11• al=108" a4=11• a5=1l5"
".058 025 1 80 80 7400 99 2
1· 061 010 1 8 8 1800 99 2 A=443 B=446 [=282
~ 080 016 1 4 4 1300 99 2 A=481 B=391 [=485
fJd1MEAN a1=97"a2=103"
PHllCJ GTll;:
~· "'" "
A=255 B=l93 C=29B0-·3139 D=381 E=2991-·315D f=155
a1=1l5° a2=11" a3=108° a4=12" a5=1l5°
__..,_ ___..,_
--1111'- --1111'-
~
' CLIENT:
II
PROJECT IMPLEMENTATION CONSULTANT FILE NMIE ITtN BAN v£ : sr.ALE Irt L(: : STATUSTlNHT~: PRO.ECTIDlf AN : HANOI PILOT LIGHT METRO LINE Sectkln NOOn - HlllOI Ralway station
~ I CHOEl.Wnr: Tl1 VAA THVC Hll;N DIJ AN PIC-TEC-ORR-WVQ.JIM-1MIB8_2".DWa - Technical Design
TU1N WONG sATBO rn1 rnlDlt::M TP HA NOi E>olil1 Nh&i- Ge Hill NOi
~ ~ ~ SYSTRAS.A
DESIGNED BYITlll£'rKE: : FORtMTIKHO eANv£ : DATEINGAY: Tm.EITtN BAN v£ :
~ HRB NHUE RIVER CROSSING
'~ A.K A1 31/01110 lll1Q'T SONG NHUo7
~§ "' "'"'11 2nd submission of lechnlcaldes91 H 3.Maurls
·"""""
!!s 1C ....10 UM•1"d H IG. Maurts
·""""" CIECKED BYsoAT: Thladr..ingrnJlllnolba-IDar-.d,coplacl<r-rapmcilclld DECK- PS1-PS2 - REINF - BAR LIST-2 I 3HANOI METROPOUTAN RAIL TRANSPORT PROJECT BOARD
q 1B ,...,, UPDATE>
~·
jG. Maurie
'"""""" G. Mauris i1 whole ar in part <r used fOr any prl4)Ca wihoU; lh8 priarwrillBn
BAN ~TcAU- PS1-PS2-C0TTH~P- DANH Ml,ICTI-tANH-2/
~ 1A 31/01/10 Fi18118a111
~·
3.Mauris
·""""" BAN OiiAN DUONG sAT00 1111 HA N()I permissiondHRB.
! •
""'"" """"
PROJECT DIRECTORIGIAM e0c IX/AN : CHIEFDESIGNERIa-io tt11eM Tii1£T KE: : Bin ve nQ" khOng auqc ph6p ar. d1o11g dllCI mQI hlrll tll)c, ml)I phln hay DRA'MNG NO. IBAN v£: SO :
I2A~ B
REVISION
""'
DESCRIPTION ClilEFOFDl!O IDAn bl), mil khOng o!uqc •II' .Dig~ ~IAln bin all. HRB.
PIC-TEC-GRR-WVO-J04-18586-BS(IAOO
""" NQI DUNG SO'A 001 THl~ICE
"" Cl(JNIGlllETE Alain Bllchereau P.Amaud
r r
Total Lengths and Weights
Number of members 1
Type T Type R BENDING DIAMETERS !mm)
Lengths of standard hooks (mm)
Total Weight- Total Total Weight- Total Diameters 6 8 10 12 14 16 18 20 22 25 28
Diameter Lengt-h per unit Weight Length per unit Weight
Hooks Diameters I 6 I 8 10 12114116 18 20 22 I 25
lml (kg/ml lkgl lml (kg/ml lk gl !Type 11 36 48 60 72 84 96 108 120 132 150 224
6 0 0.222 0.00
D
Frames
24 32 40 48 56 64 108 120 132 150 224
8 192 0.395 75.70 IT••e 21 nchorage
30072 96 120 144 168 192 216 240 264Hooks 0 0 0 0 0 0 0 0 0 0 0 D
!Type 11
10 253 0.617 155.98 IType 11
ll
Frames
12 3125 0.888 2774.61
R
Frames IT••e 21
0 0 0 0 0 0 0 0 0 0
0 0 0 0 0 0 0 0 0 0 0
14 406 1.210 491.02
)Type21 nchora%e 96 144 192 300IType 72 120 168 216 240 264
16 3194 1.580 5046.19 R
Frames
18 402 2.000 804.00 BAR DIMENSIONS IT••e 21
0 0 0 0 0 0 0 0 0 0
20 531 2.470 1311.08 - THE DIMENSIONS ARE GIVEN ON THE OUTSIDE FIBER OF THE REBAR )SEE BELOW)
22 0 2.980 0.00 - THE TOTAL LENGTHS ARE CALCULATED ON THE BASIS OF THE CENTERLINE. nchora%e
25 1289 3.850 4962.65 )ISO 3766,2004 - METHOD Bl !Type 1 36 48 60 72 84 96 108 120 132 150
28 0 4.830 0.00 - THE BENDING ANGLES ARE GIVEN IN DEGREES.
ff
D
Frames
ITvne 2) 0 0 0 0 0 0 0 0 0 0
32 0 6.310 0.00
4
E
nchora%e
36 0 7.990 0.00 !Type 1 36 48 60 72 84 96 108 120 132 150
R
Frames40 0 9.860 0.00 0 0 0 0 0 0 0 0 0 0ITvne 2)
Type T Type R
nchora%e
Total Length - Bended. 6824
,!f- !Type 1 65 65 65 65 65 65 72 80 88 100
Total Length - St-raight-
D
Frames2567
" 0 0 0 0 0 0 0 0 0 0ITvne 2)
Tot.ii Length Im) 9390
nchora%e
Total Weight - Bended: 13233 !Type 1 65 65 65 65 65 65 72 80 88 100
R
Total Weight - Straight 2389 Frames 0 0 0 0 0 0 0 0 0 0
Tot.ii Weight lkg) · 15621
ll""I!! 2)
Mean Size lmml GENERAL WEIGHT kg -
I 16.4
I I 15621
I c .Acm•(AD• OTP
---llP- - _..,_
~
' CLIENT:
II
PROJECT IMPLEMENTATION CONSULTANT FILENMIEITtN BAN v£ : sr.ALEIrtLe: STATUSTlNHT~: PRO.ECTIDlf AN : HANOI PILOT LIGHT METRO LINE Sectkln NOOn - HlllOI Ralway station
~ I CHOEl.Wnr: Tl1 VAA THVC Hll;N DIJ AN PIC-TEC-ORR-WVQ.JIM-1Mll7-8_2".DWa - Technical Design
TU1N WONG sATBO rn1 rnlDlt::M TP HA NOi E>olil1 Nh&i- Ge Hill NOi
~ ~ ~ SYSTRAS.A
DESIGNED BYITlll£'rKE: : FORtMTIKHO eANv£ : DATEINGAY: Tm.EITtN BAN v£ :
~ HRB NHUE RIVER CROSSING
'~ A.K A1 31/01110 lll1QT SONG NHUo7
~§ "' "'"'11 2nd submission of lechnlcaldes91 H 3.Maurls ..-...
!!s 1C ....10 UM•'"' H IG. Maurta ..-... CIECKED BYsoAT: Thlad-ngrnJlllnolba-IDal-.d,coplaclor-rapmcilcad DECK- PS1-PS2 - REINF - BAR LIST-3 I 3HANOI METROPOUTAN RAIL TRANSPORT PROJECT BOARD
q 1B ,...,, UPDATE>
~·
jG. Mauria
"·""""' G. Mauris i1 whole ar in part or used for any prl4)Ca wihoU; lh8 priorwrillBn
BAN ~TcAU- PS1-PS2-C0TTH~P- DANH Ml,ICTI-tANH-3/
~ 1A 31/01/10 Fi181 l8al8
~·
3.Mauria ..-... BAN OiiAN DUONG sAT00 1111 HA N()I permissiondHRB.
! •
""'"" -· PROJECTDIRECTORIGIAMe0c IX/AN : CHIEFDESIGNERIa-io tt11eM Tii1£T KE: : Bin ve nQ" khOng auqc ph6p ar. d1o11g dllCI mQI hlrll tll)c, ml)I phln hay DRA'MNGNO.IBAN v£ SO :
I2A~ B
REVISION
"" DESCRIPTION ClilEFOFDl!O IDAn bl), mil khOng o!uqc •II' .Dig~ ~IAln bin all. HRB.
PIC-TEC-GRR-WVO-J04-18587-B
"''"' "" NQI DUNG SO'A 001 THl~ICE
"" Cl(JNIGlllETE Alain Bllchereau P.Amaud
08
"'N
D
@//
"'N
D
-9
N
Ci
I I I
I I f I I
l I
1
I 1 I
I I I I I I
l I
I
I
I
'
I
I
I
I
I I
L
- - I L _ _ _ _ _ ~ - - - - - - --~
N
D
N
D
N
D
N
0
039 038 037 036 034
r--7 ~~ - - r--7
..;
15 ~
I
... _,
~ D
07 075
Li 
I I
I I 1
'
1
1
[Tc . - . - --'
I
' I
I I
I I I I
I
1· I • 1 _L_L .I :_i __L .I I , L:__ I _ l_ _J
N
Ci
_,
Ci
108 c =
078 076
LJ
I
I
I
I
_ _ L..__ _ _ · - .
N N
0 0
N
103 Ci
----= 033
- NOTES: ---------------------~
GHI CHL.f:
1. REINFORCEMENT YIELD STRENGTH: FY=420 MPA.
1. ClldNG El0 CHAY CllA cx:fTTHE'.P :fy--420 Mpa
2. CONCRETE COVER: C=50 MM.
2. Ld P eeTONG e.<o v£c=50 mm
3. FOR PARAPET S"fARTER BARS REFER TO DWG. NO.
3. EE. XEM THANH COT THeP CHO'GOA LAN CAN XJNXEM BAN ve so
PIC-TEC-GRR-WVO-J00-18803-B TO PIC-TEC-GRR-WVO-J00-18808-B
IL--L---_-_-_-L---_-_-_-_-L----_-_-_-_-_-_-_-_-_-_-_-_-_-_-_-_-_-_-_-_-_-_-_-_-_-_-_-_-_-_...~---_-_-_-_-_-_......,-_-_-_-_-_..,+---_-_-_-_-_:.--a.-rENT-:----------------,--=,=~=1==---P-ROJ-ECT-IM_PL_EM_E_N-TA_T_ION_CO_N_s_u_LT-ANT-----,r.Fl:-;LE:-::NAA1=E:;'.lTt:::::-NBAN=::;v£:-:----1.SCALE=.:-:,-;;!Y;;-u;;:".::-------,~SI;;A:::;:ru;;;s;;-1-;;T1N:;;:H;-;1RAN;;;_::;G;;".::--'i....l'.'PROJ~ECT~;;;;;llV;;;;;AN'.""":~:::HAN0::7:::::'.1P:l:-:LO::T7L:IG::'.HT::'::MET=RO::-:U:::N:-E-:Sedian::--.:.~N::"hon'""".-Ha~na':'..Ra::::'it.oiy""'"'.S1atial:::.:--~1...j
'' ~ L---'-----'------------------1-----+----+------I CHOflAu T1: T1 VAN THI,IC HreN DI,/AN PIC-TCC<;R""""""4-1""""Ll'>DWG - Teclmical Design TIJY£NellONGs>.rEJOTHITHIe1eMTPHANQI BatnN~n .Ga Hi NOi
~ 115
I 3"
2111
1r1
1
Updatlld A.K G. Mourio l, Joing • SYSTRAS.A DESIGNEDBYTHli;rK£ : FORMATKHOBANVE: DAlENGAY: Tm.ETtNBANVE: NHUE RIVER CROSSING
1I .'!E 2A 30KM/11 2nd•ubmll1lonoflllchnlcaldaolgn A.K G.Mourto P.Amaud HRB A. K A1 31/01/10 VU'QTSONGNHUI;:
i
lS 10 D1111r!D Updatad A.K " · Mourto 0
. Arnaud
~~ 1C :81B/1D Updatad A.K " . Mourto 0
. Amaud CHECKED BYSlll.T: Thil-gmu1tnotbo1-1...ec1,_«___ DECK-ES1-ES2-REINF-1/5
~ ~ L-~1e~.c2Ml:=&11:..:::.D....1..~uPO>;=:JED::...._____________~A:;,.K::.....--i::G;.:. Mou=rto=-.J..,.:..:_Amau==d:........i HANOI METROPOLITAN RAIL TRANSPORT PROJECT BOARD G. Maur1s ::,::::;:~,;,'."u1ec1<oro,...""'_""""""..........- BAN ~T cAU - ES1-ES2. COT THi:P - 1 / 5
~ I ~ 1A 3
1
m
111
° Firot 11aJa A.K G. Mourto P. Amaud BAN DlfAN allONG sA.TllOTHI llANQI PROJECTDIRECTOR GIAMaOC01,1AN: CHIEF~IGNERCll)NHleMTH1£rKe: ..,,..n0y_....,._.,...,ng....,..,.•.,,._"""iHni.v DRAl'l1NGNO. eANV£sO: I
ti ~ ~ ~:g,N ~ NQloi:;:~~fJOI :':Bl' :;®Bl' g:;Oli~~!t Alain B~cheraau P. Amaud .,..~... -....,..,~t~..,,..,,..."""· PIC-TEC-GRR-WVO-J04-18590-B 3A...
~
~
i
I!!
~
t ui w .!:
F %
!I $i
!;l 8
~ uii: B
@ 15
E
~1''D~ E('· [] ~
- - - ;; 14 14
020 '6 0 ~ ~
I
~ ~ ~
D DI .----------
020
1 -" _. -" t
--(§)
-(§
020 II.
Ib::o:
I '= I=
016
@) [1 '-!J '= I=
~6x4-D16 F' =,__ ,____
r
~ ~ ,_____ '---
8 01[ '= I= I---- ,_____
~
'--
'= I=
h.
io; 'Si
,_____
,_____
014 ,_____
§) D10
,__
r ~ ~
i --r: ·016
-@)
211"'"1--~120
201 1218
0
15 8
14 14
l ~
'-~-- '-'-
;;I
4
s--LONGITUDINAL BAR
THANH COT ™i;p DOC
-s
""0
~ @
SECTION 1-1
MAT CAT 1-1
SCALE: 1120
T'l' Lfi':1/20
1
r::;-::;.., LONG.BAR -
~HCOT™ePDO
SECTION A-A
MAT CATA-A
SCALE: 1/20
Ti'Ll;:1120
o-----+-----+----------------------------_._------......_----..._--___. Q.IENT:
o-----+-----+----------------------------_._------......_----..._--___. CHOflAuru:
3" 21111r11 Updatlld A.K
2A 30KM/11 2nd •ubmll1lon oflllchnlcal daolgn A.K
10 D1111r!D Updatad A .K HRB
1C ~B/1D A .K
,______
,_
-
I
~1
•
~
001
~
cI
CD
~
LillL@---
I 016
8 --
D25
8 #
025
8 #
D14 @)L__J~
~
cI
"" 4
D 4
€Y--
03
PROJECT IMPLEMENTATION CONSULTANT
11 VAN THl,IC HleN DI,/ AN
FILE NAA1ElTtN e,1,1/£:
SYSTRAS.A
DESIGNED BYTHli;rK£ :
A. K
CHECKED BYSlll.T:Updatad
18 2Ml&'ID UPDATED A .K G. Maur1s
HANOI METROPOLITAN RAIL TRANSPORT PROJECT BOARD
1A 31m1/1D Fl..tlla» A .K1-----+-----+-----------------------------4------------1--------l BAN DI/AN llWNG sA.ra0 THI HA NQI
REVISION DATE
SLrAOOI Nal.Y
DESCRIPTION
NQI DUNGsLrAfJOI
IHIHl!BI'
HIM!
CllllClllBI'
IOI.!
PROJECTDIRECTORGIAMaocDI/AN: CHIEF~IGNERCll) NHleMTH1£r Ke:
Alain B~cheraau P. Amaud
SECTION 2-2
MAT CAT2-2
SCALE: 1/20
SCALE TYLE:
FORMATKHO BAN VE:
A1
STAlUS TfNH~G :
Teclmical Design
DATENGAY:
31/01/10
Thil <Rwi'ID mUll:notbe eithlrlOlrled,<q>ied«otl'lll'Wile NP'Odiacl
ln wtdeah P11rtorul8dfor•nr prupmewllhoul:.. prlor'Mltsl
parmlllllonot HRB.
......My_..,.,._.......ng ..... ..,.. .... _rn(llpMnt.y
....~ ...- .........~t~'"""'""'""""-
SECTION 3-3
MATCAT3-3
SCALE: 1/20
TY Ll;:1/20
11
Q
NOTES: ~~~~~~~~~~~~~~~~~~~~~
GHI CHL.f:
1. REINFORCEMENT YIELD STRENGTH: FY=420 MPA.
1. ClldNG El0 CHAY CllA cx:fTTHE'.P :fy-----420 Mpa
2. CONCRETE COVER: C=50 MM.
2. Ld P eeTONG e.<ov£c=50 mm
3. FOR PARAPET S"fARTER BARS REFER TO DWG. NO.
3. Ee XEM THANH COT THe!P CHO'GOA LAN CAN XJN XEM BAN ve so
PIC-TEC-GRR-WVO-J00-18803-B TO PIC-TEC-GRR-WVO-J00-18808-B
PROJECT CVAN: HANOI PILOTLIGHT METRO LINE SediDn Nhon•HantiRailway S1atial
TIJY£NflOONG sATEJ0THITHIfll~M TPHA NQI BatnN~n · Ga Hi NOi
Tm.ETtNB,l,IVE: NHUE RIVER CROSSING
VU'QT SONG NHUI;:
DECK- ES1-ES2 - REINF - 2 / 5
BAN ~T cAU - ES1-ES2 ·COT THi:P - 2 / 5
DRAl'l1NGNO. BANV£SO:
PIC-TEC-GRR-WVO-J04-18591-B 3A
~
~
i
I!!
~
t ui w .!:
F %
!I $i
!;l 8
~ uii: B
3" 21111r11 Updatlld
2A 30KM/11 2nd 1ubmll1lon oflllchnlcal daolgn
10 D1111r!D Updatad
1C ~B/1D Updatad
:1
® --
LONGITUDINAL BAR
THANH OOT THEP DOC
®LONGITUDINAL BAR
THANH COT THEP DOC
A.K
A. K
A . K
A . K
I n
0fo42> 2x23 -D2S
UvcY @is o
.Amoud
.Amoud
15
0 814 14 ~
"
HRB
c;
II II 11 AK ·11 II ""' II II
~1 <)/§)LONG. BAR
1
THANH COT THEP DOC
- SECTION B-B
MAT CAT B-B
•SCALE : 1/20
TI'Le:1/20
n -
9 @
~ =
- en
o-
~ @,
Q <)~ LONG.BAR -
THANH COT THEP DOC
- SECTION C-C
MATCATC-C
• SCALE : 1/20
ri' LS:1/20
n
~
.....08
·-<;::•
....
PROJECT IMPLEMENTATION CONSULTANT
Tl1 VAN THl,IC HleNDI,/ AN
SYSTRAS.A
18 2Ml&'ID UPDATED A . K
1A 31m1/1D Flrotlla» A . K
.Amoud HANOI METROPOLITAN RAIL TRANSPORT PROJECT BOARD
t--+=:-::--+-=-:-:---------------+;;.;.;...--.i::;..;=~i-:_.:..:Amou::=d:.......i BAN DlfAN llWNG sA.rllOTHI llANQI
PROJECTDIRECTORIGIAMaocDI/AN:
REVISION DATE DESCRIPTION IHIHl!BI'
Sll'AOOI Nal.Y NQI DUNGWAfJOI HIM!
CllllClllBI' l>&IHlllill
IOI.! otl1t11;M1111!rl! Alain B~cheraau
((£
H
@) er
..,o $!~
~iiCi~
,& ,.,,., .....N ...
FILE NAA1ElTtN e,l,i/£:
DESIGNED BY TH1£TK£ :
A. K
CHECKED BYSlll.T:
G. Maur1s
,c:--- 'll I
., I
- n
=N
N
c;
8 '0 @)
--=
N=
"' ... @-en Co
o - 0
·-<;::&,,:, @,
....";;
N
D12 C';:.. / "
~ ~/
SCALEITYLE:
FORMATKHO BAN VE:
A1
STAlUS TfNH~G :
Teclmical Design
DATEINGAY:
31/01/10
Thil <Rwi'IDmUll:notbe eithlrlOlrled,<q>ied« otl'lll'Wile NP'Odiacl
ln wtdea h P11rtor ul8dfor •nr prupmewllhoul:.. prlor'Mltsl
parmlllllonot HRB.
NOTES: ~~~~~~~~~~~~~~~~~~~~~­
GHI CHL.f:
1. REINFORCEMENT YIELD STRENGTH: FY=420 MPA.
1. ClldNG El0 CHAY CllA cx:fTTHE'.P :fy---420 Mpa
2. CONCRETE COVER: C=50 MM.
2. Ld P BE TONG e.<ov£c=50 mm
3. FOR PARAPET S"fARTER BARS REFER TO DWG. NO.
3. ElE XEM THANHCOT THe!P CHO' COA LAN CAN XJN XEM BANV£SO
PIC-TEC-GRR-WVO-J00-18803-B TO PIC-TEC-GRR-WVO-J00-18808-B
PROJECTIDVAN: HANOI PILOTLIGHT METRO LINE SediDn Nhon•HantiRailwayS1atiCln
TIJY£NflOONG sAr EJ0THITHIfll~M TPHA NQI Batn N~n. GaHi NOi
Tm.E TtNB,l,iVE: NHUE RIVER CROSSING
VU'QT SONG NHUI;:
DECK- ES1-ES2 - REINF - 3 / 5
BAN ~T cAU • ES1·ES2 · COT THi:P • 3 / 5
CHIEF~IGNERCll) NHleMTH1£rK£: ......My_..,.,._.......ng ..... ..,.. .... _ rn(llpMno.y
.... ~ ... - ......... ~t~YGnb6n cOo HRB.
DRAl'l1NG NO.IBANVESO:
P. Amaud PIC-TEC-GRR-WVO-J04-18592-B 3A
~
~
it
i
~ii:
4
N
o
8---LONGITIJDINAL BAR
THANH COT THr:P DOC
#@ D2S
~ 8--"-"'----+lm.-
c:;:;., LONG.BAR
~ THANH COT THeP DOC
~ MILD STEEL BARS R10
'.J cAC THANH COTli:i.iii:P NON R10
n
~~
8
D
SECTION D-D
MAI£~~g-o
'TYL1~:1120
n
8 1@ @
C>
"'o ;::;
MILD STEEL BARS R10 ~
cAC THANH COT THr:P NON R10 ~
-
1
0n
8 !!!~ 9911!.
N ...N ro
o " D
N
012 Qr-~~/
L__
101
c:;:;....-
102
--=
@
---=
~~~~~~~~~~!~n~~~~~~~~~;~~~~·~~~~~~;~~~~~~~~~~~~r 1: :1
s--LONGITIJDINAL BAR
THANH COT THeP DOC
SECTION E-E
MAT CAT E-E
• SCALE: 1120
TYLl1.:1/20
~
@ ,@
DETAIL OF BEARING
CHI Tl~T COA GCI
SCALE: 1/20
TYLIS:1/20
,@ ,@
I!!
~
uw .!:
F %
!I $1
!;l 8
uB
I
cAc Tl!ANH COT THr:P NON R10
cBAR SKETCH 15 Br---'"R~10""+-_--tt__1
SO' HOA Tl!ANH COTTHeP 'R10
EPOXY BONDING COMPOUND TO
157
HON H P NOi GHeP EPOXYElU' AP D NG
BE APPLIED JUST BEFORE CONCRETING
TROOC KHI 00 er: TONG
I
RECESS R/F BEFORE UNFOLDING
HCC NEO R/F TRU'CYC KHI MO'
RECESS R/F AFTER UNFOLDING
HCC NEO R/F SAU KHI MO'
SCALE: 1/20
TYLl1.:1/20
t----+----+-------------_.____..._______, Q.IENT:
t----+----+-------------_.____..._______, CHOflAuru:
3" 21111r11 Updatlld A.K
2A 30KM/11 2nd •ubmll1lon oflllchnlcal daolgn A.K
10 D1111r!D Updatad A . K
1C ~B/1D A . K
HRB
Updatad
18 2Ml&'"ID UPDATED A . K HANOI METROPOLITAN RAIL TRANSPORT PROJECT BOARD
1A 31m1/1D Flrotlla» A . K
t----+----+---------------4----t----4----+ BAN DI/AN llWNG IA.TllOTHI llANQI
REVISION DATE
SLrAOOI Nal.Y
DESCRIPTION
NQI DUNGWAfJOI
IHIHl!BI'
HIM!
CllllClllBI'
IOI.!
•
SCALE: 1/20
TYLl;:1/20
PROJECT IMPLEMENTATION CONSULTANT
11 VAN THl,IC HleN DI,/ AN
SYSTRAS.A
PROJECTDIRECTORGIAMaocDI/AN:
Alain B~cheraau
FILE NAA1ElTtN e,l,i/£:
DESIGNED BYTH1£TK£:
A. K
CHECKED BYSlll.T:
G. Maur1s
CHIEF ~IGNERCll) NHleMTH1£rK£:
P. Amaud
SCALE TYLE:
FORMATKHO BAN VE:
A1
STAlUS TfNH~G :
Teclmical Design
DATENGAY:
31/01/10
Thil <Rwi'ID mUll:notbe eithlrlOlrled,<q>ied«otl'lll'Wile NP'Odiacl
ln wtdeah P11rtorul8dfor•nr prupmewllhoul:.. prlor'Mltsl
parmlllllonot HRB.
......My_..,.,._.......ng ..... ..,.. .... _rn(llpMnhly
.... ~ ... - ......... ~t~Y<nb6ncOoHRB.
PLAN VIEW 5-5
MAT BANG 5-5
SCALE: 1/20
TY LIS:1120
NOTES: ~------------------~
GHI CHL.f:
1. REINFORCEMENT YIELD STRENGTH: FY=420 MPA.
1. ClldNG El0 CHAY CllA cx:fTTHE'.P :fy--420 Mpa
2. CONCRETE COVER: C=50 MM.
2. Ld P ee TONG e.<o v£c=50 mm
3. FOR PARAPET S"fARTER BARS REFER TO DWG. NO.
3. ElE. XEM THANH COT THe!P CHO' COA LAN CAN XJN XEM BAN 111:SO
PIC-TEC-GRR-WVO-J00-18803-B TO PIC-TEC-GRR-WVO-J00-18808-B
PROJECT CVAN: HANOI PILOTLIGHT METRO LINE SediDn Nhon•HantiRailway S1atial
TIM:NflOONG sATElOTHITHIfll~M TPHA NQI ElatnN~n · Ga Hi NOi
Tm.ETtNB,l,iVE: NHUE RIVER CROSSING
VU'QT SONG NHUI;:
DECK- ES1-ES2- REINF -4 / 5
BAN ~T cAU - ES1-ES2 ·COT THi:P - 4 / 5
DRAl'l1NGNO. BANV£SO:
PIC-TEC-GRR-WVO-J04-18593-B 3A
~
~
i
I!!
~
t ui w .!:
F %
!I $i
!;l 8
~ uii: B
S LONG.BAR
THANH COT THEP DQC
LONG.BAR
™ANH COT nu~.P DOC
___ ~ 2x6-D18
~ (9150
___ @---'0"'"14;;;......__,._
&--
LONG.BAR @ Q
THANH c0T THi;P DQC ~
11 I- - - -
1 1
__J
@
~~0=8- @l !"
SECTION F-F
MAT CAT F-F
• SCALE : 1/20
TYLl;::1/20
-8
016 ~@--
®-
012
@ ==::J
014 @)__J
~
@) c:::=
012
@==::J
~
----7
016
@--
--e
- ·- ·- ·-· $-· $PLANVIEW.6-6 ·- ·-
.
5
MAT BANG 6-6
• SCALE: 1/20
TY Ll;::1/20
o----+---+---------------_.____......__ __......__ __. Q.IENT:
•PROJECT IMPLEMENTATION CONSULTANT
Tl1 VAN lHl,IC HleN DI,/ ANo----+---+---------------_.____......__ __......__ __. CHOflAunr:
3" 21111r11 Updatlld A.K
2A 30KM/11 2nd •ubmll1lon oflllchnlcal daolgn A.K
10 D1111r!D Updatad A . K HRB
1C ~B/1D Updatad A . K
HANOI METROPOLITAN RAIL TRANSPORT PROJECT BOARD18 2Ml&'ID UPDATED A . K
1A 31m1/1D Flrotlla» A . K1----+---+---------------_._--------11-------l BAN DI/AN llWNG IA.TllOTHI llANQI
REVISION DATE
SLrAOOI Nal.Y
DESCRIPTION
NQI DUNGWAfJOI
IHIHl!BI
HIM!
CllllClllBI
IOI.!
SYSTRAS.A
PROJECTDIRECTORIGIAMaocDI/AN:
Alain B~cheraau
-- @) ~"------,
--@
FILE NAA1ElTtNBAN/£:
DESIGNED BYTHli;rK£ :
A. K
CHECKED BYSlll.T:
G. Maur1s
CHIEF~IGNERCll) NHleMlll1£rKe:
P. Amaud
"'Ci
SCALE TYLE:
FORMATKHO BAN VE:
A1
l--+l->-4+--++--4+-41--+i--+1--+1-~++--4+-41--+l--+l--+I-~~"'-- 8 I/
----++-~1---4-----1+----<+-++-~l+----+l----++----l+------l+----U---++-----+e-++----l+-+--'~ €9 /J
!::!
9
,,~
Ll -4'" N - ;::!
Cl Ci ~- @ Cl
@ @> @~ @) @) @)
-- __) ==::J ==::J
@-
STAlUS TfNH~G :
Teclmical Design
DAlEINGAY:
31/01/10
SECTION 5-5
MATCAT5-5
SCALE: 1/20
TY Ll;::1/20
NOTES: ~~~~~~~~~~~~~~~~~~~~~
GHI CHL.f:
1. REINFORCEMENT YIELD STRENGTH: FY=420 MPA.
1. ClldNG El0 CHAY CllA cx:fTTHE'.P :fy--420 Mpa
2. CONCRETE COVER: C=50 MM.
2. Ld P BE TONG e.<ov£c=50 mm
3. FOR PARAPET S"fARTER BARS REFER TO DWG. NO.
3. ElE XEM THANH COT THe!P CHO' COA LAN CAN XJN XEM BAN VE SO
PIC-TEC-GRR-WVO-J00-18803-B TO PIC-TEC-GRR-WVO-J00-18808-B
PROJECTDI,/AN: HANOIPILOTLIGHT METRO UNE Sedian Nhon•HantiRailway S1atiCln
TIJY£N flOONG sATEJ0THITHIfll~M TP HANQI Elatn N~n · Ga Hi NOi
Tm.E~NBAN1£ : NHUE RIVER CROSSING
VU'QT SONG NHUI;:
Thil <Rwi'ID mUll:notbe eithlrlOlrled,<q>ied«otl'lll'Wile NP'Odiacl
ln wtdeah P11rtorul8dfor•nr prupmewllhoul:.. prlor'Mltsl
parmlllllonot HRB.
DECK- ES1-ES2 - REINF - 5 / 5
BAN ~T cAU - ES1-ES2 ·COT THi:P - 5 / 5
......My_..,.,._.......ng ..... ..,.. .... _rn(llpMnt.y
....~ ...- .........~t~'"""'""'""""·
DRAl'l1NGNO. BANV£SO:
PIC-TEC-GRR-WVO-J04-18594-B 3A
B.. TIJll No.
~=
Tahl
lengll ~
BOid e.. TIJll No. ~'t. Tot~
lengll
"""'
BOid e.. TJPI No. ~t. Tot;il
lengll
"1ope BOid e.. TIJll No.
~"~ Tahl
Length ::BOid
.... Old •f No. T1pe Dillensions Sh"' RH. .... Old ot ~... No. Cade TIJll
- Sh'I' RH. .... Old ot
""'
No. Cade TJPI
- Sh'I' RH. .... Old If ~... N• TJPI
- Shipe RH.
... -- ... ....
- ... -- ... --- - - -
~ Gd E001 012 1 16B 16B 6900 00
·- 014 016 1 24 24 1B20 11 2 Aa'IO 1-251 Ol3 012 1 64 64 2330 99 1 "9IW llal49 C•'llt34 043 010 1 46 46 1350 13 1 ..... I
...........
ci1 • ' {J002 016 1 44 44 64BO 00 ...... 015 016 1 12 12 1B60 21 2 A-711 a.m c.m 034 020 1 9 9 7350 99 1 ~ a.ns CdlZJ .,..... .. ,. 044 025 1 16 16 5320 99 2 .WSS M95 c.t76T MM E-1'16'1 fwZ55
...,....az.raJm•r DUS" 112a72" llJa... 114-'IZ" 115-'DS"
006 016 1 1B 1B 2B10 21 2 Ad'JI 1.aa-1511 Ca9'JI
ci1 016 016 1 6 6 3150 21 2 Aa71JI llaWZ-MT c.m
ci1 035 016 1 23 23 6270 15 1 AaJBi.Wl~
~ 045 025 1 46 46 4925 99 2
'#.... """ """ '
007 016 1 1B 1B 2B10 21 2 Ad'16 1.aa-1511 Ca9'JI
ci1 011 016 1 6 6 3245 99 2 A-'115 a.Tl!iJ-'IJl!ii c-96Z
~ 036 020 1 9 9 1100 25 1 A"'8I "'611 C41 MT &5'18
~ .wss a.os-mo CsTN'l-271 IM96-mz
.... """ ...... "'176'1-293 f.255
ci1
OUS"cds72"113s'11"114a72".S-US-~
... 016 1 6 6 2470 99 2 ....m •·• Cd'l6
~ 018 016 1 4 4 2160 21 2 A-711 a.stt-'701 C.'IJI 037 020 1 9 9 9290 25 1 Aa& ... c.m D.J25 E.stn
~ 046 DB 1 1B4 1B4 730 99 1 Astn BJDS-715
...,..
""" """ K
009 016 1 6 6 20BO 99 2 ....,,. ...., [at'J6
~ 019 016 1 4 4 2280 99 2 Aa'll'J a.s.t-650 Cm96Z
~ OJI 020 1 1 1 65BO 25 1 "9445 M45 Wll D-1ID &5'10I
~ 047 014 1 1B 1B 6240 99 2
'·...,.
"""
..... ~
010 016 1 6 6 mo 21 2 A""'6 1•'151. C-916
ci1 020 016 1 32 32 2865 21 2 A-711 B-UI WJll-1112 y "' 020 1 B B 6960 99 1 A-144 B-5331 c.t44
li=:d1 A-129 a.26lt6 C.141 IWB EsZl63 M40 G.1Zt
""" ........... oura2a39" aJaT' a.k1U" as-wG16sUS"
011 016 1 6 6 1940 99 2 A•m a.zu c.m
~ 021 016 1 32 32 2865 21 2 Aa71JI Mii c.2Jll-1112 y 040 012 1 46 46 4060 15 1 Aamt-92 a.sn-m c.•n-2D4
~ 041 025 1 32 32 2540 99 2 A-'05 11.J'JO c.nn
Qd1..... """ ....
y ~ L.=J012 016 1 6 6 3630 21 2 Ad'lti 1451. c.'169 031 01B 1 1B 1B 3660 15 1 A-nn a.mz c.TJS 041 016 1 23 23 mo 00 _,_.,.,,, ' 049 016 1 35 35 970 99 2 .............. ....
013 012 1 4 4 1760 21 2
ci1 "' 01B 1 46 46 32BO 15 1
~ 042 012 1 64 64 1350 15 1
~ 050 016 1 9 9 97BO 99 2
, •AolW l.u6 Cd46 A-24'6 a.zm ~ W'3 8dl7 c.6'B ._.,.., a..wTO c.m .,..,...,. Es011 f.4tl
• ...... DUS" 112awrllJa'IZ" 114-72" aS-'D5"
,,_.._..,_ AllllCMlll-111'- ~-111'-
""'1Uf/la _..,_
~
' CLIENT:
II
PROJECT IMPLEMENTATION CONSULTANT FILENMIEITtN BAN'£: : sr.ALEIrt Le: STATUSTlNHT~: PRO.ECTIDl/#.! : HANOI PILOT LIGHT METRO LINE Sectkln NOOn -HlllOI Ralway station
~ I CHOEl.Wnr: Tl1 VAA THVC Hll;N DIJ AN PIC-TEC-ORR-WVQ.JIM-1Mil68_2".DWa - Technical Design
TU1N WONG sATBO rn1 rnlDlt::M TP HA NOi E>olil1 Nh&i- Ge Hill NOi
~ ~ ~ SYSTRAS.A
DESIGNED BYITlll£'rKE: : FORtMTIKHO eANv£ : DATEINGAY: Tm.EI'Tt:N BANv£ :
~ 2A
'''""' 2nd 11ubmi11ion of technical d81ign
~·
3.Mauria ........ HRB NHUE RIVER CROSSING
'~ A.K A1 31/01110 lll1Q'T SONG NHUo7
~§ '" 01/1Cll10 u,,.,..., H 3.Maurls ........
!!s ''
,...,, UM•'"' H IG. Maurta ........ CIECKED BYsoAT: Thia dr-ing rnJlll not ... - IDar-.d, coplacl ....- rapmcilcad DECK- ES1-ES2 - REINF - BAR LIST-1I3HANOI METROPOUTAN RAIL TRANSPORT PROJECT BOARD
q ,. ,...,, UPDATE>
~·
jG. Mauria
'"""""" G. Mauris i1 whole ar in part or used for any Prl4XMI wihoU; lh8 priorwrillBn
BAN ~TcAU- ES1-ES2-C0TTH~P- DANH Ml,ICTI-tANH-1 /
~ " 31/01/10 Fi181 llal8
~·
3.Mauria ........ BAN OiiAN DUONG sAT001111 HA N()I permissiondHRB.
! •
""'"" ...... PROJECT DIRECTORIGIAM e0c IX/AN : CHIEFDESIGNERIa-iott11eM Tii1£T KE: : Bin v8 nQ" khOng o!uqc ph6p aC. dlol'IQ dUCI mQI hlrll tll)c, ml)! phln hay DRA'MNG NO.IBANv£ SO :
~ B
REVISION OA" DESCRIPTION ClilEFOFDl!O IDAn bl), mil khOng o!uqc •II' .Dig~ ~IAln bin all. HRB.
PIC-TEC-GRR-WVO-J04-18595-BS(IAOO
""" NQI DUNG SO'A 001 THl~ICE
"" Cl(JNIGlllETE Alain Bllchereau P.Amaud 2A
Bir TJP! No. .~ Tota
~
~..8"d Bir TJP! No. .".:;.. Tota
Lmglh
~·
8"d Bir TJP! No. ,'t, Tota
l01glh '::8"d Bar T1pe No. .~ Tot~
Llngtht: Bmd
Ai< "1d
"·- No. Col! TJP! 111o.-. Shape Rn. •n ..i
".... N• Col! TJP!
_,. Shipe Rn. ..n ..i
.:!. ... No. TJpe ll1e11slans Shipe Rn. ..n ..i
" ·- No. TJP! llilenslans Shipe Rn
... -- sin
- - sin
- ... --mm mm mm - a mm mm mm - a mm mm mm - a mm mm mm - a
051 D14 1 16 16 5770 25 1 Aall5 IWIJ Cd15 Ml5 &lt606
~ 075 D14 1 1B 1B 3440 99 2 A.in a.m1 U2l'I n.uu
~ 104 D12 1 3 3 1120 15 1 A-"2 W65 c.6'1J
~ 151 D14 1 14 14 11BO 21 2 .........'""' cilll1all" .z.'11" 671" ......
'
~
•
~ ~052 D14 1 16 16 5780 25 1 ""61J IWIJ c-515 M'l5 &Wiit 076 D14 1 1B 1B 3620 99 2 A-m ..,.. c-369 D-911 E-31'1 F-1Zf'I 105 D12 1 3 3 1B50 15 2 Aoit'166 "'"" C.'13 152 D1B 1 12 12 2140 00 ...,..
01J5" Cl2a9I" lddl" a4-72" a5"1J!" •
~ cil'" D10 1 46 46 1740 15 2 "-"" """° c.wn-su 077 D14 1 4 4 1630 21 2 A-725 Bd4T C.'125 106 D16 1 3 3 5290 99 2 A-ut Wtt!i Cd1t4 MD .. .. 15l D1B 1 12 12 3140 00 ......• '..... •MO" az.r c:ddr
054 DB 1 4 4 1130 99 2 .... ...., """ ~ 071 D14 1 4 4 2700 21 2 A-m •n c.125
cil 107 D20 1 3 3 5560 21 2 WU..,._~
cil 154 D14 1 14 14 2260 15 1 Am60J W'J5 Cs16IJ
~
055 DB 1 9 9 1130 99 2 .... ...., """ ~ 079 D10 1 1 1 B70 25 2 A-153 B-426 c-m n-m we ~ 101 D12 1 16 16 1160 21 2 A-S• a.ta-246 c.511
cil.... 155 D14 1 14 14 2340 15 1 A-Tm 84'15 c.iOJ
~
056 DB 1 4 4 1130 99 2
~ 080 D10 1 1 1 690 15 2
~ 109 D12 1 10 10 910 21 2 y 156 D16 1 32 32 2025 00.... ...., ..... A-467 11"317 c.234 A-200 .... """
...,.._,,,.
MEAN
~ ~ ~057 DB 1 B B 1140 99 2 Ae'WI B-351 c.m 081 D10 1 1 1 900 99 2 ........,, 115 D14 1 16 16 1810 15 2 WO Wiit C.'llU 157 R10 1 4 4 1B10 00 ..,.,,
......
051 DB 1 B B 1160 99 2 A.el a.351 C'"1ltO D"325
n 101 D1B 1 3 3 2730 11 1 ........~
~ ,,. D14 1 32 32 1B40 15 2 WO Wiit C.Ui.3
~ 151 R10 1 10 10 1500 21 1 A.s5I .... c.558
cil
"' D14 1 54 54 1030 99 1 ..... E :i 102 D12 1 3 3 2700 99 2 ...~ ... c.511
~ ,,, D14 1 4B 4B 1200 00 ...... 159 D10 1 B B 690 00 .....111-115• 112-n•
E :i fl ~
~060 D14 1 1B 18 1130 99 1 ..,,. 10J D12 1 3 3 2050 99 1 A-sJO a.149 c.tut. 150 D12 1 32 32 620 11 2 ..................... ,___,___.
--cm>-
__..,_ __.._
--1111'-
~
' CLIENT:
II
PROJECT IMPLEMENTATION CONSULTANT FILENMIEITtN BAN v£ : sr.ALEIrt Le: STATUSTlNHT~: PRO.ECTIDl/#.! : HANOI PILOT LIGHT METRO LINE Sectkln NOOn -HlllOI Ralway station
~ I CHOEl.Wnr: Tl1 VAA THVC Hll;N DIJ AN PIC-TEC-ORR-WVQ.JIM-1Blll&8_2".DWa - Technical Design
TU1N WONG sAT90 TI-II TI-IIDlt::M TP HA NOi E>o1i11 Nh&i- Ge Hill NOi
~ ~ ~ SYSTRAS.A
DESIGNED BYITlll£'rKE: : FORtMTKHOeANv£ : DATENGAY: Tm.EITtN BAN v£ :
~ 2A
'''""' 2nd 11ubmi11ion of technical deeign
~·
3.Mauria ........ HRB NHUE RIVER CROSSING
'~ A.K A1 31/01110 lll1QT SONG NHUo7
~§ '" 01/1Cll10 u,,...., H 3.Maurls ........
!!s ''
,...,, UM•'"' H IG. Maurta ........ CIECKED BYsoAT: Thia dr-ing rnJlll not ... - IDar-.d, coplacl ...- rapmcilcad DECK- ES1-ES2 - REINF - BAR LIST-2 I 3HANOI METROPOUTAN RAIL TRANSPORT PROJECT BOARD
q ,. ,...,, UPDATE>
~·
jG. Mauria
"·""""" G. Mauris i1 whole ar in part or used fOr any Pll4XM8 wihoU; lh8 priorwrillBn
BAN ~TcAU- ES1-ES2-C0TTH~P- DANH Ml,ICTI-tANH-2/
~ " 31/01/10 Fi18118a111
~·
3.Mauria ........ BAN OiiAN DUONG aA700 7111 HA N()I permissiondHRB.
! •
""'"" ...... PROJECT DIRECTORGIAM e0c IX/AN : CHIEFDESIGNERIa-iott11eM nil~ ~ : Bin ve nQ" khOng auqc ph6p ar. dlol'IQ dllCI mQI hlrll tll)c, ml)! phln hay DRA'MNG NO. IBANv£: SO :
I2A~ B
REVISION OA" DESCRIPTION ClilEFOFDl!O IDAn bl), mil khOng o!uqc •II' oD!g ~ ~IAln bin all. HRB.
PIC-TEC-GRR-WVO-J04-18596-B,,,.... """ NQI DUNG SO'A 001 THl~ICE
"" Cl(JNIGlllETE Alain Bllchereau P.Amaud
r r
Total Lengths and Weights
Number of members I
Type T Type R BENDING DIAMETERS Imm!
Total Tot-al
......... • ' 10 12 14 16
• 20 zz 25
" " " 40 Lengths of standard hooks lmmJTot-al Weight Tot-al Weight
HooksDiameter Length per unit- Weight Length per unit- Weight
(Type 11
" 48 .. 12 .. .. 108 120 B2 150 224 256 288 320 D11111t.r• 6 I I 10 I 12 14 16 I 11 20 I 22 25 211 3Z 36 I 40
lml (kg/m) lkg) lml lkg/m) lkg) D
Frani1s
24
" 40 48 56 .. 108 120 B2 150 224 256 288
'"6 0 0.222 0,00 0 0.222 0,00 IT- 2)
8 172 0.395 67.91 0 0.394 0.00
Hooks
o o o o o o o o o o o • o o linmir~r
" .. 121 144 161 192 216 240 264 300
"'
,..432 480(Type 11 ITJpe
R ,,.,_
@_
D ,,_10 150 0.617 92.62 22 0.617 13.72 o o o • o o o o o o o o • o T2 .. 120 164 161 192 216 248 264
"' "'
... 432 480(Tvn1 21 1T--ti
12 1659 0.888 1473.35 0 0.888 0,00 linthor~r o o o o o o o o o o o o D oITJPI
14 744 1.210 900.05 0 1.208 0.00 R ,,_ D D o D D o o o o o o D o o
16 1196 1.580 1889.98 0 1.580 0,00 IT·-ti
18 288 2.000 576.62 0 1.997 0.00 BAR DIMENSIONS
20 293 2.470 722.72 0 2.470 0.00 - THE DIMENSIONS ARE GIVEN ON THE OUTSIDE FIBER OF THE REBAR ISEE BELOWI •nmir:r
" 48 .. T2 .. .. 111 120 132 fiD
"' llZ 216 240
~
D
!Type
22 0 2.980 0,00 0 2.980 0,00 - THE TOTAL LENGTHS ARE CALCULATED ON THE BASIS OF THE CENTERLINE.
,,_
" 48 .. " .. .. IOI 120 132 fiD 168 192 216 240
(ISO 3766'2004 - METHOD B)
1T··-- ti
25 393 3.850 1512.86 0 3.850 0.00 Mnmor:r o o o o o o D oITJPI o o o o o o
28 0 4.830 0.00 0 4.830 0.00 - THE BENDING ANGLES ARE GIVEN IN DEGREES. R ,,._ D D o D D o D o D D o D D o32 0 6.310 0,00 0 6.310 0,00
,A ,-L
IT.... ti
36 0 7.990 0.00 0 7.990 0.00
li~ •nmir:r T2
" .. WO 112 UI 144
"'
40 0 9.860 0.00 0 9.870 0.00
iii ~ ~ ,tt-
!Type
" " " " " "D ,,._IT.... ti
" " " " " " T2
" .. •• 112 UI 144
"''--- ~nmor~r o o o o o o o o o o o o D oType T Type R
R
ITJPI
Total Length - Bended: 3184 15
,,._ D D o o D o o o o o o o o oIT.... ti
Total Length - Straight 1711 7
"'Total Length (ml 4895 22
Total Weight - Bended: ms 9
Total Weight - Straight: 1901 4
Total Weight (kg) 7236 14
Mean Size Imm]: GENERAL WEIGHT kg
I 15.5
I I 7250
I c
Armo[AD• OTP
__..,_ __..,_
~
~ CLIENT:
II
PROJECT IMPLEMENTATION CONSULTANT FILENMIEITtN BAN v£ : SCALEIit t< ' $TATUSIT1NHT~: PRO..ECTIDl,l'AN: HANOI PILOT LIGHT METRO LINE Section NIKJn - Hanoi Ralway station
~ I CHOEIAUnr: Tll VAN THVC Hll;N DIJ AN PIC-TEC-ORR-WVQ.JIM-1Mll7-8_2".DWa - Technical Design
TM:N Etro'NG sA.T fJO TH[ TI-IIEl~M TP HANOi ~ Nh~ -Ga Hl NOi
! • SYSTRASA
DESIGNED BYITlll£'r KE; : FORtMTIKHOBANv£ : DATENGAY: TITLEITtN BAN VE : NHUE RIVER CROSSING
"~ '~ "' '''""' 2nd 1ubmi11ion of technical d811ign
~·
3.Mauria .Arnaud
HRB A.K A1 31/01110 lll1Q'T SONG NHUo7
~. '° 01/1Cll10
"""'""' H 3.Maurls .Arnaud
!! . 1C ....10 u~•.., H IG. Maurta P.Amaud CIECKED BYsoAT: Thia dr-ing rnJlll not ... - IDar-.d, coplacl ....- rapmcilcad DECK- ES1-ES2 - REINF - BAR LIST-3 I 3.~
"
,...,, UPDATE>
~·
jG. Mauria P.Amaud HANOI METROPOUTAN RAIL TRANSPORT PROJECT BOARD
G. Mauris i1 whole ar in part orused for any prl4)Ca wihoU; lh8priorwrillBn
BAN ~TcAU- ES1-ES2-C0TTH~P- DANH Ml,ICTI-tANH-3/•§ BAN llllAN IJUONG sAT!JO THI HA N()I permlallanafHRB.
~
3Ul1110 Fi181 l8al8
~·
3.Mauria .Arnaud
! • ,. PROJECTDIRECTORIGIAMElOC IX/AN : CHIEFDESIGNERICHO MileM Tlll£'r KE; : Bin ve nQ" khOng auqc ph6p ar. dlol'IQ dllCI mQI hlrll tll)c, ml)I phln hay DRA'MNG 00..IBAN VE SO :
I2A~
0. """"" '"' DESCRIPTION
-·· """" ClilEFOFDl!IDI
Alain Bllchereau IDAn bl), mil khOng o!uqc •II' .Dig~ ~IAln bin all. HRB.
PIC-TEC-GRR-WVO-J04-18597-B~ li SOAOO NGAY NQI DUNG SCrA E>OI llil~KE
'" ctiONIGnETlll! P.Amaud
•
~
~
''
Ii!
I!
t
i
~ii:
I
L~·
I
I
1-·-·-·-___y~-·-I
I
I
I
1
I
I -i.,E> '
I
I
I
I
c~
v
/
rh
r=F?
I LLJ 
I!! o----+---+---------------_.____.....__ __......__ __. Q.IENT:
~ o----+---+---------------_.____.....__ __......__ __. CHOflAuru:
u 3" 21/11Y11 Upda111d
w .!:
2A 3004'11 2nd aubml11lon at'lechnlcal dMlgn
1C ~8110
A.K
A . K
A . K
SECTION 1-1
MAT CAT 1-1
§c-
SCALE: 1/10
'NL!;: 1/10
I
1-016
sJI
I
1-016
@LJ
'
HRB
so
@l
c:::::::J
SECTION B-8
MAT CAT B-B
SCALE: 1/10
ITLI;: 1/10
•
PROJECT IMPLEMENTATION CONSULTANT
11 VAN THl,IC HleN DI,/ AN
SYSTRAS.A
F % Upda111d
!I $i
18 2MIBl10 UPDATED
!;l 8
A . K HANOI METROPOLITAN RAIL TRANSPORT PROJECT BOARD
t----+---+----------------4-,.-.K---4----1----l BAN DI/AN llWNG sA.rllOTHI llANQI
u 1A 31m1110
REVISION DATE
B SLrAOOI Nal.Y
Flr"1,_.,
DESCRIPTION
NQI DUNGWAfJOI
IHIHl!BI'
HIM!
CllllClllBI'
IOI.!
PROJECTDIRECTORGIAMaocDI/AN:
Alain B~cheraau
---·-·-·-·-- ~r-- --·-·-·-·
FILE NAA1ElTtNBAN/£:
DESIGNED BYTH1£TK£:
A. K
CHECKED BYSlll.T:
G. Maur1s
CHIEFDESIGNERCll) NHleMlll1£rK£:
P. Amaud
SECTION A-A
MAT CATA-A
•SCALE: 1110
ITLI; :1/10
SCALETYLE:
FORMATKHO BAN VE:
A1
STAlUS TfNH~G :
Teclmical Design
DAlENGAY:
31/01/10
Thil <Rwi'ID mUll:notbe eithlrlOlrled,<q>ied«otl'lll'Wile NP'Odiacl
ln wtdeah P11rtor ul8dfor•nr prupmewllhoul:.. prlor'Mltsl
parmlllllonot HRB.
......My_..,.,._.......ng ..... ..,.. .... _m(llpMnt.y
.... ~ ... - .........~t~ ,,.,, ...... HRB.
NOTES : ~~~~~~~~~~~~~~~
GHI CHIJ:
1. REINFORCEMENT YIELD STRENGTH: FY=420 MPA.
1. CllONG DO CHAY COACOT THEP fc=420 Mpa.
2. CONCRETE COVER: C=50 MM.
2. LdP BE TONG BAf> VI; c=50 mm
PROJECT CVAN: HANOI PILOTLIGHT METRO LINE Sedion Nhon•HantiRailway S1ation
TIJY£NflOONG sATElOTHITHIfll~M 1l'HANQI ElatnN~n · Ga Hi NOi
Tm.ETtNBANVE: NHUE RIVER CROSSING
VU'QT SONG NHUI;:
DECK - BLISTER TYPE 7 - REINF
BAN MAT cAU-BLISTER LO~l 7. c0TTHIOP
DRAl'l1NGNO.BANV£SO:
PIC-TEC-GRR-WVO-J04-18650-B 3A
Total Lengths and Weights
No. 1~fNboar
Number of members 1
B" Type Toliil Shope Bend
mork ocd of ineo(h No
Length
Code Type Dimensions Shope R""
s12e memb memb
Type T Type R BENDING DIAMETERS (mm!
mm mm mm a Lengths of standard hooks (mm)
• Total Weight Total Total Weight Total Diameters 6 8 10 12 14 16 18 20 22 25 28
~Q
Diameter Length per unit Weight Length per unit Weight Hooks Diameters 6 8 10 12 14 16 18 20 22 25
001 014 1 17 17 2615 99 2 A=599 B=669-,J61 C=90D--1DJB 0=605 lml (kg/m) lkg) lml lkg/m) lkg) (Type 11 36 48 60 72 84 96 108 120 132 150 224
MEAN c.:1=B2° c.:2=73" c.:3=99"
6 0 0.222 0 00
0
~=
'"'
.,,.... .., Frames
24 32 40 48 56 64 108 120 132 150 224
~
8 0 0.39 5 0.00
!Type 2) nchorages
02A 016 1 2 2 3840 99 1 A=194 B=691 [=2429 Hooks !Type 1) 72 96 120 144 168 192 216 240 264 JOO
a1=101" aZ=B7"
10 0 0 617 0.00 (Type 1)
0 0 0 0 0 0 0 0 0 0 0 0
R
~
Frames
12 46 0.888 41.14 Frames (Type 2)
0 0 0 0 0 0 0 0 0 0
~
!Type 21 0 0 0 0 0 0 0 0 0 0 0
028 016 1 1 1 3840 99 1 A=794 B=691 [=2429 14 44 1210 53.80 !.nchorages
c.:1=101° a1:=87°
!Type 1) 72 96 120 144 168 192 216 240 264 300
16 17 1.580 27 03 R
4=d1 18 0 BAR DIMENSIONS
Frames
0 0 0 0 0 0 0 0 0 0
2.000 0.00 (Type 2)
003 016 1 1 1 2740 21 2 A=1088 B=10ZZ [=707
20 0 2 470 0.00 - THE DIMENSIONS ARE GIVEN ON THE OUTSIDE FIBER OF THE REBAR ISEE BELOW)
4=d1
22 0 2 980 0 00 - THE TOT AL LENGTHS ARE CALCULATED ON THE BASIS OF THE CENTERLINE
004 016 1 1 1 2850 21 2 A=1321 B=B93 [=707 25 0 3 850 0.00 !ISO 3766:2004 - METHOD B]
l.nchorages
36 48 60 72 84 96 108 120 132 150!Type 1)
28 0 4.830 0.00 - THE BENDING ANGLES ARE GIVEN IN DEGREES
~
0
Frames
IType 21
0 0 0 0 0 0 0 0 0 0
32 0 6 310 0 00
r'17
E
005 012 1 17 17 1925 99 2 •-1W UO c-;;q;; o-m U1'--011 e-"°0 nchorages
36 0 7 990 0.00 - 36 48 60 72 84 96 108 120 132 150
MEAN c.:1=135" aZ=91" c.:3=98" a4=B1" a5=135"
"'
!Type 1)
~=
'"'
.,,.... . ., 0 R
0
40 0 9.860 0.00 Frames
4 ITvoe 21
0 0 0 0 0 0 0 0 0 0
006 012 1 5 5 2720 99 2 A=110 B=108Z [=251 0=987 E=151 f=11Dn t~
a1=1l5° a2=99" al=B1" a4=71" a5=135"
0
Type T Type R
Total Length - Bended: 108
nchorages
65 65 65 65 65 65 72 80 88 100
,tr- !Type 1)
Total Length - Straight: 0
0
0 Frames
0 0 0 0 0 0 0 0 0 0
Total Length (m): 108
(Type 21
' !Anchorages
Total Weight - Bended 122 " !Type 1) 65 65 65 65 65 65 72 80 88 100
R
Total Weight - Straight: 0 Frames
0 0 0 0 0 0 0 0
(Tv~e 21
0 0
Total Weight (kg): 122
~
t?Mean Size Imm) GENERAL WEIGHT kg
I
13.5
I I
122
I
AcmoCAD•-OTP- Amo[AO• DTP
ArmoEAD•-OTP- Arrno[~D• - OTP -
~
I
CLIENT:
II
PROJECT IMPLEMENTATION CONSULTANT FILENMIEITtN BAN'£: : sr.ALEIrtL(: : STATUSTlNHT~: PRO.ECTIDl/ #.! : HANOI PILOT LIGHT METRO LINE Sectkln NOOn - HlllOI Ralway station
•ii ~ ~
CHOEl.Wnr: Tl1 VAA THVC Hll;N DIJ AN PIC-TEC-ORR-WVQ.JIM-1M51-8_2oU!Wa - Technical Design
TU1N WONG sATBO rn1 rnlDlt::M TP HA NOi E>olil1 Nh&i- Ge Hill NOi
SYSTRAS.A
~ '~ HRB
DESIGNED BYITlll£'r KE: : FORtMTIKHO eANv£ : DATEINGAY: Tm.EITtN BAN v£ : NHUE RIVER CROSSING
7
~§ "' "'"'11 2nd submission of lechnlcal des91 H G.Maurls ..-... A.K A1 31/01110 lll1QT SONG NHUo
!!s 1C ....10 u~•.., H ~.Maurie ..-... CIECKED BYsoAT:
1B ,...,, UPDATE>
~·
IG. Maurie •..-... HANOI METROPOUTAN RAIL TRANSPORT PROJECT BOARD
Thlad-ngrnJlllnolba-IDal-.d,coplaclor-rapmcilcad DECK· BLISTER TYPE 7 • REINF ·BAR LIST
q G. Mauris i1 whole ar in part or used for any prl4)Ca wihoU; lh8 priorwrillBn
~ 1A 31/01/10 Fi18118a111
~·
G.Mauris ..-... BAN OiiAN DUONG sAT00 1111 HA N()I permissiondHRB. BAN ~T cAU - BLISTER L0"'-1 7 -COT TI-l~P - DANH MVC TI-IAN
! • PROJECTDIRECTORIGIAMe0c IX/AN : CHIEFDESIGNERIa-io tt11eM Tii1£T KE: : Bin ve nQ' khOng auqc ph6p ar. d1o11g dllCI mQI hlrll tll)c, ml)I phln hay DRA'MNGNO.IBAN v£ SO :
~ B
REVISION OAIE DESCRIPTION
""'"" -· ClilEFOFDl!O
I2A
"''"' "" NQI DUNG SO'A 001 THl~ICE
"" Cl(JNIGlllETE Alain Bllchereau P.Amaud
IDAn bl), mil khOng o!uqc •II' .Dig~ ~IAln bin all. HRB.
PIC-TEC-GRR-WVO-J04-18651-B
r r
Total Lengths and Weights
.~
Number of members I
a.. TJpe No. Tot•
ltnglh~·pe ll01d
Hk illll
".... No. Cade TJPI lll111- Shope Rn. Type T Type R BENDING DIAMETERS !mm)... -- Lengths of standard hooks !mm)mm mm mm - u
Total Weight Total Total Weight Total Diameters 6 8 10 12 14 16 18 20 22 25 28
Diameter Length per unit Weight Length per unit Weight
Hooks Diameters 6 I 8 I 10 12 14 I 16 I 18 20 22 I 25
001 014 I IS IS 2945 99 2 A=59J-,585 8=1044-,1151 [=579-,865 0=605 .,..~ lml lkg/m) lkg) lml lkg/m) lkg) (Type 11 36 48 60 72 84 96 108 120 132 150 224
MEAN o:1=59"->58"a:2=76"-·75"a3=90"
6 0 0.222 0.00
D
Frames
~=
'"'-.., 0
(Type2) 24 32 40 48 56 64 108 120 132 150 224
~
8 0 0.395 0.00 .,nchora%es 72 96 120 144 168 192 216 240 264 30002A 016 I I I 4030 99 2 A=751 B=891 [=2444 Hooks (Type 1
10 0 0.617 0.00 (Type 11 0 0 0 0 0 0 0 0 0 0 0 D0:1=105°0:2=87°
R
ll
Frames
0 0 0 0 0 0 0 0 0 012 47 0.888 41.45 Frames ITvoe 21
~
(TYDl2) 0 0 0 0 0 0 0 0 0 0 0
02B 016 I I I 4070 99 2 A=751 B=941 [=2441 14 44 1.210 53.46 "nchora%es
(Type 1 72 96 120 144 168 192 216 240 264 300
0:1=105°0:2=87°
16 14 1.580 22.06 R
Frames
ciI 18 0 2.000 0.00 BAR DIMENSIONS )Type2) 0 0 0 0 0 0 0 0 0 0
003 016 I I I 2900 21 2 A=1009 B=952 [=1009
20 0 2.470 0.00 - THE DIMENSIONS ARE GIVEN ON THE OUTSIDE FIBER OF THE REBAR (SEE BELOW)
22 0 2.980 0.00
ciI
- THE TOTAL LENGTHS ARE CALCULATED ON THE BASIS OF THE CENTERLINE. "nchora%e1
004 016 I I I 2960 21 2 A=1009 B=1013 [=1009 25 0 3.850 0.00 (ISO 3766•2004 - METHOD Bl (Type 1 36 48 60 72 84 96 108 120 132 150
4.830 - THE BENDING ANGLES ARE GIVEN IN DEGREES.
ff
D
Frames28 0 0.00 0 0 0 0 0 0 0 0 0 0
A=91 B=264 [=979 D=264 E=1049 F=91i
' 32 0 6.310 0.00
(Type2)
005 012 I s s 2660 99 2 lo
11~~
..nchora%e! 36 48 60 72 84 96 108 120 132 150
011=135° 012=72" 013=9D0
014=9D" 015=135° c 36 0 7.990 0.00 (Type 1
R
-00
40 0 9.860 0.00 Frames 0 0 0 0 0 0 0 0 0 0(Type 21
006 012 I IS IS 2225 99 2 A=91 B=698-.986 C=250 D=641:-.930 E=1:47 F=91
MEAN Dl1=135° Dl2=9D0
Ol3=90" Ol4=75" c'5=135°
~=
'"'-'''"
c
Type T Type R
..nchora%e 65 65 65 65 65 65 72 80 88 100Tot-al Length - Bended: 105
,tf-
(Type 1
Tot-al Length - Straight-:
D
Frames0 0 0 0 0 0 0 0 0 0 0
Tot-al Length (ml: 105
(!voe 21
nchora%e!
Tot-al Weight- - Bended. 116 (Type 1 65 65 65 65 65 65 72 80 88 100
R
FramesTot-al Weight- - Straight- 0 0 0 0 0 0 0 0 0 0 0
Tot-al Weight- (kg): 117
(Type 21
Mean Size Imm] GENERAL WEIGHT kg
II 13.5
I I 117
I c__..,_
A•moCAD• DTP
,..,,,,.,._..,_ -- ---
~
' CLIENT:
II
PROJECT IMPLEMENTATION CONSULTANT FILENMIEITtN BAN v£ : sr.ALEIrtLe: STATUSTlNHT~: PRO.ECTIDlf AN : HANOI PILOT LIGHT METRO LINE Sectkln NOOn - HlllOI Ralway station
i I CHOEl.Wnr: Tl/ VAA THVC Hll;N DIJ AN PIC-TEC-ORR-WVQ.JIM-1-.S_JIA.DWa - Technical Design
TU1N WONG sATBO rn1 rnlDlt::M TP HA NOi E>olil1 Nh&i- Ge Hill NOi
~ ~ SYSTRAS.A
DESIGNED BYITlll£'r KE: : FORtMTIKHO eANv£ : DATEINGAY: Tm.EITtN BAN v£ :
~ HRB NHUE RIVER CROSSING
'~ A.K A1 31/01110 lll1QT SONG NHUo7
~§ "' "'"'11 2nd submission of lechnlcal des91 H 3.Maurls
-"""""
!!s 1C ....10 UM•'"' H IG. Maurts
-""""" CIECKED BYsoAT: Thladr-ingrnJlllnolba-IDar-.d,coplaclor-rapmcilcad DECK - BLISTER TYPE 6 - REINF - BAR LISTHANOI METROPOUTAN RAIL TRANSPORT PROJECT BOARD
q 1B =•10 UPDATE>
~·
jG. Maurie
'"""""" G. Mauris i1 whole ar in part or used for any prl4)Ca wihoU; lh8 priorwrillBn
BAN ~T cAU - BLISlER L0"'-1 6 -COT TI-l~P - DANH MVC TI-IAN
~ 1A 31/01/10 Fi18118a111
~·
3.Mauris
·""""" BAN OiiAN DUONG BAT 00 THI HA NOi permissiondHRB.
! •
""'"" ...... PROJECTDIRECTORIGIAMe0c IX/AN : CHIEFDESIGNERIa-io tt11eM Tii1£T KE: : Bin ve nQ' khOng auqc ph6p ar. d1o11g dllCI mQI hlrll tll)c, ml)! phln hay DRA'MNGNO.IBAN v£: SO :
~ B
REVISION
"'"' DESCRIPTION ClilEFOFDl!O IDAn bl), mil khOng o!uqc •II' .Dig~ ~IAln bin all. HRB.
PIC-TEC-GRR-WVO-J04-18653-B
''""" """ NQI DUNG SO'A 001 THl~ICE ... OONIGlllETE Alain Bllchereau P.Amaud 2A
SECTION B-B
MAT CAT 8-80
SCALE: 1/10
TYL!;: 1110
nn®®
! ,-t--1-----------~~~: /i
L_j J I I
.J
~
:r-/---rl~--f=i==..--~__J
I I
I I
{= !=?
""' __,
"
"
"
i'
/"-
"
"
"
"
'
'
'
'
- - '
I
'
-~··- ~·- - ·- - ~·- - - - ~ -- - -
I
I--
!---
~
~ f-
~ ~
'-
. :-.
.
!---
J---
e--
-ti= ~
1-
L-.-
-l.ILII W L.m-11
.
SECTION A-A
MAT CAT A-A
SCALE : 1/10
T'f'LI; :1110
,
r r
Total Lengths and Weights
..~
Number of members I
a.. TJpe No. Tot• ISh•pe ll01d
Hk illll
"""" No. ltnglh Cade TJPI lll111- Shope Rn. Type T Type R
... -- BENDING DIAMETERS !mm)
mm mm mm - n Lengths of standard hooks !mm)
Total Weight Total Total Weight Total Diameters 6 8 10 12 14 16 18 20 22 25 28
-~
Diameter Length per unit Weight Length per unit Weight
Hooks Diameters 6 I 8 I 10 12 14 I 16 I 18 20 22 I 25
001 D14 1 15 15 2515 99 2 A.ser. ~ c.m-M o.sn lml lkg/m) lkg) lml lkg/m) lkg) (Type 11 36 48 60 72 84 96 108 120 132 150 224
ION ~· .z.n·aJatr 6 0 0.222 0.00
D
Frames
~=
'"'-"l'll3o.......... ' 24 32 40 48 56 64 108 120 132 150 224
~
8 0 0.395 0.00 11... 21 "nchora%es
OZA D16 1 1 1 3890 99 1 A-'J6T a.TU Cd452 Hooks (Type 1 72 96 120 144 168 192 216 240 264 300
10 0 0.617 0.00 (Type 11 0 0 0 0 0 0 0 0 0 0 0 D..........,. R
ll
Frames
12 41 0.888 36.26 Frames ITvne 21 0 0 0 0 0 0 0 0 0 0
~
(Tvoo 21 0 0 0 0 0 0 0 0 0 0 0
028 D16 1 1 1 3950 99 1 """'' ....., c.2449
14 39 1.210 46.74 'nchora%es
..........,. (Type 1 72 96 120 144 168 192 216 240 264 300
16 14 1.580 21.54 R
ciI 18 0 2.000 0.00 BAR DIMENSIONS
Frames 0 0 0 0 0 0 0 0 0 0
003 D16 1 1 1 2860 21 2 A-1051 W35 Cdl51
)Tvoe 2)
20 0 2.470 0.00 - THE DIMENSIONS ARE GIVEN ON THE OUTSIDE FIBER OF THE REBAR (SEE BELOW)
ciI
22 0 2.980 0.00 - THE TOTAL LENGTHS ARE CALCULATED ON THE BASIS OF THE CENTERLINE. 'nchora%e1
004 D16 1 1 1 2930 21 2 Adl51Mlll C"1ll51 25 0 3.850 0.00 !ISO 3766•2004 - METHOD Bl (Type 1 36 48 60 72 84 96 108 120 132 150
28 0 4.830 0.00 - THE BENDING ANGLES ARE GIVEN IN DEGREES.
ff
D
Frames
• ITvoe 21 0 0 0 0 0 0 0 0 0 0
A-fl 1-00 c.llT DsZTI EatJI F-91 J( 32 0 6.310 0.00
005 D12 1 5 5 2450 99 2 J..
11~"7~
~nchora%es
D'IJ5" cdall" cda9I" Cl4a9I" 6'1J5"
'
36 0 7.990 0.00 (Type 1 36 48 60 72 84 96 108 120 132 150
40 0 9.860 0.00
R
Frames
IT••• 21
0 0 0 0 0 0 0 0 0 0
006 D12 1 15 15 1905 99 2
Adi 1""1 C..m-421 '""'...,._.,, '"''"lJ"ION ll1sU5" ·~ ll3atr .... ~
~=
'"'-"'"' . Type T Type R
Total Length - Bended: 93
"nchora%e 65 65 65 65 65 65 72 80 88 100
,tf-
(Type 1
Total Length - Straight: 0
D
Frames
Total Length (ml:
IT••• 21
0 0 0 0 0 0 0 0 0 0
93
nchora%e!
Total Weight - Bended. 105 (Type 1 65 65 65 65 65 65 72 80 88 100
Total Weight - Straight 0
R
Frames
IT•oe 21
0 0 0 0 0 0 0 0 0 0
Total Weight (kg): 105
Mean Size Imm] GENERAL WEIGHT kg
I 13.5
I I 105
I c__..,_
A•moCAD• DTP
,..,,,,.,._..,_ -·- ---
~
I
CLIENT:
II
PROJECT IMPLEMENTATION CONSULTANT FILENMIEITtN BAN v£ : sr.ALEIrtL(: : STATUSTlNHT~: PRO.ECTIDlf AN : HANOI PILOT LIGHT METRO LINE Sectkln NOOn - HlllOI Ralway station
i CHOEl.Wnr: Tl1 VAA THVC Hll;N DIJ AN Technical Design
~ ~
PIC-TEC-ORR-WVQ.JIM-1Mll68_2".DWa - TU1N WONG sATBO rn1 rnlDlt::M TP HA NOi E>olil1 Nh&i- Ge Hill NOi
SYSTRAS.A
~ '~ HRB
DESIGNED BYITlll£'rKE: : FORtMTIKHO eANv£ : DATEINGAY: Tm.EITtN BAN v£ : NHUE RIVER CROSSING
7
~§ "' "'"'11 2nd submission of lechnlcaldes91 H G.Maurls ........ A.K A1 31/01110 lll1QT SONG NHUo
!!s 1C ....10 u~•.., H ~.Maurie ........ CIECKED BYsoAT:
1B ,...,, UPDATE>
~·
IG. Mauria
"·"""""
HANOI METROPOUTAN RAIL TRANSPORT PROJECT BOARD
Thlad-ngrnJlllnolba-IDal-.d,coplaclor-rapmcilcad DECK - BLISTER TYPE 5 - REINF - BAR LIST
q G. Mauris i1 whole ar in part or used fOr any Pll4XM8 wihoU; lh8 priorwrillBn
~ 1A 31/01/10 Fi181 l8al8
~·
G.Mauria ........ BAN OiiAN DUONG BAT 00 THI HA NOi permissiondHRB. BAN ~T cAU - BLISlER L0"'-1 5 -COT TI-l~P - DANH MVC TI-IAN
! • PROJECTDIRECTORIGIAMe0c IX/AN : CHIEFDESIGNERIa-io tt11eM Tii1£T KE: : Bin ve nQ'khOng auqc ph6p ar. d1o11g dllCI mQI hlrll tll)c, ml)I phln hay DRA'MNGNO.IBAN v£ SO :
~ B
REVISION
"'"' DESCRIPTION
""'"" ...... ClilEFOFDl!O
,,,...,
""" NQI DUNG SO'A 001 THl~ICE
"" Cl(JNIGlllETE Alain Bllchereau P.Amaud
IDAn bl), mil khOng o!uqc •II' .Dig~ ~IAln bin all. HRB.
PIC-TEC-GRR-WVO-J04-18655-B 2A
~
~
"' I!!
ll! ~
!!!
u11
i w g
F %
!I $i
!;l 8
~ uii: B
001
15-014
@l150
OQS,f-----+----~
I'-.
!"-.
ns 1-016
['-..
['-..
003 1-016 I
n !"-.
I
I
I
I
I
I
I
I
I
I
I
I
I
I
I
I
I
I I
I I
I I
I I
I I
: :
l I
I I
I I
I I
I
I
:
I
:
'
'
I
:
I -::::-J
~"---+-1---++---~1
'-------------~1.~02s
I
'
'
'
--:J
l-----+----------1,------<02A
">+----++----+---------·'~_,ao6 D
I"-
I"'-,
o----+---+---------------_.____.___ __...__ __. Q.IENT:
o----+---+---------------_.____.___ __...__ __. CHOflAuru:
3" 21/11Y11
2A 3004'11
Upda111d A.K ll.Miwrto LI•.laing
HRB2nd aubml11lon at'lechnlcal dMlgn A . K n. Mowrto ... Arnaud
1C ~8110
18 2MIBl10
1A 31m1110
Upda111d A . K n. Mowrto ... Arnaud
UPDATED A . K ll. Miwrto ... Arnaud HANOI METROPOLITAN RAIL TRANSPORT PROJECT BOARD
Flr"111a» A . K ll. Mowrto P. Arnoud BAN DI/AN llWNG sA.ra0 THI HA NQI
REVISION DATE DESCRIPTION IHIHl!Bl' CllllClllBl' l>&IJ"lllllill
SLrAOOI Nal.Y NQI DUNGWAfJOI HIM! IOI.! otl1t11;M1111!rl!
-- ···----·- ....----- ·- ..-----·~-~··· - .------·- ~ 1~·- ~ ,_ ~·- - ·- - ---··--- · -~
-1---
L.----
•PROJECT IMPLEMENTATIONCONSULTANT
11 VAN THl,IC HleN DI,/ AN
SYSTRAS.A
PROJECTDIRECTORIGIAMaocDI/AN:
Alain B~cheraau
!..--
I~ I--
n
I@ 016
t@
.___~
i--- I-<
i----
L---
-<.- - -
D006
FILE NAA1ElTtNBAN/£:
DESIGNED BYTHli;rK£ :
A. K
CHECKED BYSlll.T:
G. Maur1s
CHIEF~IGNERCll) NHleMTH1£r Ke:
P. Amaud
-r~'o1-(
~'-1:
-e--
-~ --
SCALEITYLE:
FORMATKHO BAN VE:
A1
nt--@
J-.---
.__......,
J.--- '- I--
SECTION A-A
MAT CATA-A
SCALE: 1/10
TI'Ll1.: 1/10
STAlUS TfNH~G :
Teclmical Design
DAlEINGAY:
31/01/10
Thil <Rwi'ID mUll:notbe eithlrlOlrled,<q>ied«otl'lll'Wile NP'Odiacl
ln wtdeah P11rtor ul8dfor•nr prupmewllhoul:.. prlor'Mltsl
parmlllllonot HRB.
......My_..,.,._.....,ng.......,......_m(llpMnt.y
....~ ...- .........~t~ '"""'" "'" """·
I
)
I
~
- NOTES : --------------~
GHI CHIJ:
1. REINFORCEMENT YIELD STRENGTH: FY=420 MPA.
1. CllONG DO CHAY COACOT THEP fc=420 Mpa.
2. CONCRETE COVER: C=50 MM.
2. LdP BE TONG BAf> ve.c=50 mm
PROJECTIOI,/AN: HANOI PILOTLIGHT METRO LINE Sedian Nhon•HantiRailway S1ation
TIJY£NflOONG sAr ElOTHITHIfll~M TPHANQI ElatnN~n · Ga Hi NOi
mtETtNBANVE: NHUE RIVER CROSSING
VU'QT SONG NHUI;:
DECK - BLISTER TYPE 4 - REINF
BAN MAT cAu. BLISTER LO~I 4. cOrn-11: P
DRAl'l1NGNO.' BANV£so: IPIC-TEC-GRR-WVO-J04-18656-B 3A
r r
Total Lengths and Weights
.~
Number of members I
a.. TJpe No. Tot•
ltnglh~·pe ll01d
Hk illll
".... No. Cade TJPI lll111- Shope Rn. Type T Type R BENDING DIAMETERS !mm)... -- Lengths of standard hooks !mm)mm mm mm - u
Total Weight Total Total Weight Total Diameters 6 8 10 12 14 16 18 20 22 25 28
Diameter Length per unit Weight Length per unit Weight
Hooks Diameters 6 I 8 I 10 12 14 I 16 I 18 20 22 I 25
001 014 I IS IS 2690 99 2 A=592-,600 B=1032->90B [=753-,422 0=60~~ lml lkg/m) lkg) lml lkg/m) lkg) (Type 11 36 48 60 72 84 96 108 120 132 150 224
MEAN C11=51"->58" C12=15"->1b° Cl!3=90°
6 0 0.222 0.00
D
Frames
I~ '
0
24 32 40 48 56 64 108 120 132 150 224
'""'
ri~~,~~Var
~
8 0 0.395 0.00
(Type2) .,nchora%es
02A 016 I I I lll'lo 99 2 A=611 B=S31 [=2445 Hooks (Type 1 72 96 120 144 168 192 216 240 264 300
10 0 0.617 0.00 (Type 11 0 0 0 0 0 0 0 0 0 0 0 D0:1=105°0:2=87°
R
ll
Frames
0 0 0 0 0 0 0 0 0 012 43 0.888 38.58 Frames ITvoe 21
~
(TYDl2) 0 0 0 0 0 0 0 0 0 0 0
02B 016 I I I 3880 99 2 A=611 B=884 [=2442 14 40 1.210 48.82 "nchora%es
(Type 1 72 96 120 144 168 192 216 240 264 300
0:1=105°0:2=87°
16 14 1.580 21.35 R
Frames
ciI 18 0 2.000 0.00 BAR DIMENSIONS )Type2) 0 0 0 0 0 0 0 0 0 0
003 016 I I I 2870 21 2 A=1051 B=843 [=1051
20 0 2.470 0.00 - THE DIMENSIONS ARE GIVEN ON THE OUTSIDE FIBER OF THE REBAR (SEE BELOW)
22 0 2.980 0.00
ciI
- THE TOTAL LENGTHS ARE CALCULATED ON THE BASIS OF THE CENTERLINE. "nchora%e1
004 016 I I I 2930 21 2 A=1051 B=904 [=1051 25 0 3.850 0.00 (ISO 3766•2004 - METHOD Bl (Type 1 36 48 60 72 84 96 108 120 132 150
4.830 - THE BENDING ANGLES ARE GIVEN IN DEGREES.
ff
D
Frames28 0 0.00 0 0 0 0 0 0 0 0 0 0
A=91 B=269 C=B66 D=269 E=93B F=91 t ' 32 0 6.310 0.00
(Type2)
005 012 I s s 2450 99 2 Jo
11~~
..nchora%e! 36 48 60 72 84 96 108 120 132 150
011=135° 012=72° 013=9D0
014=9D" 015=135°
'
36 0 7.990 0.00 (Type 1
R, 40 0 9.860 0.00 Frames 0 0 0 0 0 0 0 0 0 0
A=91 B=2'J2 [=874->495 D=274 E=934-.SSS F=91:ow
(Type 21
006 012 I IS IS 2080 99 2
1= D11=135° D12=75° 013=9D0
D14=9D" 015=135°
'
0
Type T Type R
"""'""' ..nchora%eBlNH
Total Length - Bended: 97
,tf-
(Type 1 65 65 65 65 65 65 72 80 88 100
Total Length - Straight:
D
Frames0 0 0 0 0 0 0 0 0 0 0
Total Length (ml: 97
(!voe 21
nchora%e!
Total Weight - Bended. 109 (Type 1 65 65 65 65 65 65 72 80 88 100
R
FramesTotal Weight - Straight 0 0 0 0 0 0 0 0 0 0 0
Total Weight (kg): 109
(Type 21
Mean Size Imm] GENERAL WEIGHT kg
II 13.5
I I 109
I c__..,_
A•moCAD• DTP
,..,,,,.,._..,_ -- ---
~
' CLIENT:
II
PROJECT IMPLEMENTATION CONSULTANT FILENMIEITtN BAN v£ : sr.ALEIrtL(: : STATUSTlNHT~: PRO.ECTIDlf AN : HANOI PILOT LIGHT METRO LINE Sectkln NOOn - HlllOI Ralway station
i I CHOEl.Wnr: Tl/ VAA THVC Hll;N DIJ AN PIC-TEC-ORR-WVQ.JIM-1Ml!l'-8_2".DWa - Technical Design
TU1N WONG sATBO rn1 rnlDlt::M TP HA NOi E>olil1 Nh&i- Ge Hill NOi
~ ~ SYSTRAS.A
DESIGNED BYITlll£'rKE: : FORtMTIKHO eANv£ : DATEINGAY: Tm.EITtN BAN v£ :
~ HRB NHUE RIVER CROSSING
'~ A.K A1 31/01110 lll1QT SONG NHUo7
~§ "' "'"'11 2nd submission of lechnlcaldes91 H 3.Maurls
-"""""
!!s 1C ....10 UM•'"' H IG. Maurts
-""""" CIECKED BYsoAT: Thlad-ngrnJlllnolba-IDal-.d,coplacl<r-rapmcilcad DECK - BLISTER TYPE 4 - REINF - BAR LISTHANOI METROPOUTAN RAIL TRANSPORT PROJECT BOARD
q 1B ,...,, UPDATE>
~·
jG. Maurie
'"""""" G. Mauris i1 whole ar in part <r used far any prl4)Ca wihoU; lh8 priarwrillBn
BAN ~T cAU - BLISlER L0"'-14 -COT TI-l~P - DANH MVC TI-IAN
~ 1A 31/01/10 Fi18118a111
~·
3.Mauris
·""""" BAN OiiAN DUONG BAT 00 THI HA NOi permissiondHRB.
! •
""'"" ...... PROJECTDIRECTORIGIAMe0c IX/AN : CHIEFDESIGNERIa-io tt11eM Tii1£T KE: : Bin ve nQ' khOng auqc ph6p ar. d1o11g dllCI mQI hlrll tll)c, ml)I phln hay DRA'MNGNO.IBAN v£: SO :
~ B
REVISION
""" DESCRIPTION ClilEFOFDl!O IDAn bl), mil khOng o!uqc •II' .Dig~ ~IAln bin all. HRB.
PIC-TEC-GRR-WVO-J04-18657-B
''""" """ NQI DUNG SO'A 001 THl~ICE ... OONIGlllETE Alain Bllchereau P.Amaud 2A
~
~
"'18
!!!
11
i
~ii:
·~j
~n ~""'
~ --:1 -:=-:]
~ I
v---001
15-014
~~
---v@1150
~
I!!
~
uw .!:
F %
!I $i
!;l 8
uB
r---..
~
~....
, ~
~ /
I-
- 006 D0
~ODS 5-012 f ~ ~ u'-------J (iilSO -' . ~ r------
SECTION B-B ~rro~~ »r=to~-111~~~-=mu~~~~-~-~-~-~ll-=T~- ~-~~-~~-~-~-~r=~
MAT CAT B-B ~ II0
SCALE : 1/10 ~=*-~~!b:::::::-!l.l=::::!-~~~~:::::::i~~='=::!:-==~-=::::!-==~·=::::!-=11=:::::!::=1
TI'LE: 1/10 I
$
I
/ :c=J 0051------'-----
n oo
1-016
n003
1-016
~ I
T
I
I
I
I
I
I
I
I
I
:
---:J
,.._-----<---------- 1 ~----<0 2
1
I
I
--::-:]
f---+-"'-++l-------l----------1~~028
I D
: Ht----+----------1~---l 006
1
I "'I
: "'
SECTION C-C
M~I£~ip-c
TI'LE: 1/10
t---+---t---------------4----..._----11------l Q.IENT:
t---+---t---------------4----..._----11------l CHOflAuru:
3" 21/11Y11 Upda111d
2A 3004'11 2nd aubml11lon at'lechnlcal dMlgn
A.K .Mowrto u..laing
HRBA . K o . Mowrto P. Arnoud
1C ~8110 Upda1ad
18 2MIBl10 UPDATED
A . K o . Mowrto P. Arnoud
A . K . Mowrto P. Arnoud HANOI METROPOLITAN RAIL TRANSPORT PROJECT BOARD
1A 31m1110 Flr"111a» A . K JJ. Mowrto P. Arnoud BAN DI/AN llWNG sA.Ta0 THI HA NQI
REVISION DATE DESCRIPTION IHIHl!BI' CllllClllBI' l>&IJ'lllllill
SLrAOOI Nal.Y NQI DUNGWAfJOI HIM! IOI.! otl1t11;M1111!rl!
- - - - ·- ~ - ·- 1;
- -----
---=-::::--:
I~ - -
-
•PROJECT IMPLEMENTATION CONSULTANT
11 VAN lHl,IC HleNDI,/ AN
SYSTRAS.A
PROJECTDIRECTOR IGIAMaocDI/AN:
Alain B~cheraau
I.----
-
I.----
l--- -
-L--
'. '.
FILE NAA1ElTtN e,l,i/£:
DESIGNED BYTH1£TK£ :
A. K
CHECKED BYSlll.T:
G. Maur1s
CHIEF~IGNERCll) NHleMTH1£rK£:
P. Amaud
J~
·-

I
SECTION A-A
MAT CAT A-A $
SCALEITYLE:
FORMATKHO BAN VE:
A1
0
SCALE : 1/10
TI'LE: 1110
STAlUS TfNH~G :
Teclmical Design
DATEINGAY:
31/01/10
Thil <Rwi'ID mUll:notbe eithlrlOlrled,<q>ied«otl'lll'Wile NP'Odiacl
ln wtdeah P11rtor ul8dfor•nr prupmewllhoul:.. prlor'Mltsl
parmlllllonot HRB.
......My_..,.,._.......ng ..... ..,.. .... _m(llpMnt.y
....~ ...- .........~t~ '"""'" "'" """·
- NOTES : --------------~
GHI CHIJ:
1. REINFORCEMENT YIELD STRENGTH: FY=420 MPA.
1. CllONG DO CHAY COACOT THEP fc=420 Mpa.
2. CONCRETE COVER: C=50 MM.
2. LdP BE TONG BAf> VS c=50 mm
PROJECTIDVAN: HANOI PILOTLIGHT METRO LINE Sedian Nhon•HantiRailway S1ation
TIJY£N flOONG sAr ElOTHITHIfll~M TP HANQI Elatn N~n. Ga Hi NOi
mtETtNB,l,iVE: NHUE RIVER CROSSING
VU'QT SONG NHUI;:
DECK - BLISTER TYPE 3 - REINF
BAN MAT cAu - BLISTER LO~I 3. cOrTl-llOP
DRAl'l1NGNO.IBANVEso: IPIC-TEC-GRR-WVO-J04-18658-B 3A
r r
Total Lengths and Weights
..~
Number of members I
a.. TJpe No. Tot• ISh•pe ll01d
Hk illll
"""" No. ltnglh Cade TJPI lll111- Shope Rn. Type T Type R
... -- BENDING DIAMETERS !mm)
mm mm mm - n Lengths of standard hooks !mm)
Total Weight Total Total Weight Total Diameters 6 8 10 12 14 16 18 20 22 25 28
-~
Diameter Length per unit Weight Length per unit Weight
Hooks Diameters 6 I 8 I 10 12 14 I 16 I 18 20 22 I 25
001 D14 1 15 15 2515 99 2 A.ser. ~ c.m-M o.sn lml lkg/m) lkg) lml lkg/m) lkg) (Type 11 36 48 60 72 84 96 108 120 132 150 224
ION ~· .z.n·aJatr 6 0 0.222 0.00
D
Frames
~=
'"'-"l'll3o.......... ' 24 32 40 48 56 64 108 120 132 150 224
~
8 0 0.395 0.00 11... 21 "nchora%es
OZA D16 1 1 1 3890 99 1 A-'J6T a.TU Cd452 Hooks (Type 1 72 96 120 144 168 192 216 240 264 300
10 0 0.617 0.00 (Type 11 0 0 0 0 0 0 0 0 0 0 0 D..........,. R
ll
Frames
12 41 0.888 36.26 Frames ITvne 21 0 0 0 0 0 0 0 0 0 0
~
(Tvoo 21 0 0 0 0 0 0 0 0 0 0 0
028 D16 1 1 1 3950 99 1 """'' ....., c.2449
14 39 1.210 46.74 'nchora%es
..........,. (Type 1 72 96 120 144 168 192 216 240 264 300
16 14 1.580 21.54 R
ciI 18 0 2.000 0.00 BAR DIMENSIONS
Frames 0 0 0 0 0 0 0 0 0 0
003 D16 1 1 1 2860 21 2 A-1051 W35 Cdl51
)Tvoe 2)
20 0 2.470 0.00 - THE DIMENSIONS ARE GIVEN ON THE OUTSIDE FIBER OF THE REBAR (SEE BELOW)
ciI
22 0 2.980 0.00 - THE TOTAL LENGTHS ARE CALCULATED ON THE BASIS OF THE CENTERLINE. 'nchora%e1
004 D16 1 1 1 2930 21 2 Adl51Mlll C"1ll51 25 0 3.850 0.00 !ISO 3766•2004 - METHOD Bl (Type 1 36 48 60 72 84 96 108 120 132 150
28 0 4.830 0.00 - THE BENDING ANGLES ARE GIVEN IN DEGREES.
ff
D
Frames
• ITvoe 21 0 0 0 0 0 0 0 0 0 0
A-fl 1-00 c.llT DsZTI EatJI F-91 J( 32 0 6.310 0.00
005 D12 1 5 5 2450 99 2 J..
11~"7~
~nchora%es
D'IJ5" cdall" cda9I" Cl4a9I" 6'1J5"
'
36 0 7.990 0.00 (Type 1 36 48 60 72 84 96 108 120 132 150
40 0 9.860 0.00
R
Frames
IT••• 21
0 0 0 0 0 0 0 0 0 0
006 D12 1 15 15 1905 99 2
Adi 1""1 C..m-421 '""'...,._.,, '"''"lJ"ION ll1sU5" ·~ ll3atr .... ~
~=
'"'-"'"' . Type T Type R
Total Length - Bended: 93
"nchora%e 65 65 65 65 65 65 72 80 88 100
,tf-
(Type 1
Total Length - Straight: 0
D
Frames
Total Length (ml:
IT••• 21
0 0 0 0 0 0 0 0 0 0
93
nchora%e!
Total Weight - Bended. 105 (Type 1 65 65 65 65 65 65 72 80 88 100
Total Weight - Straight 0
R
Frames
IT•oe 21
0 0 0 0 0 0 0 0 0 0
Total Weight (kg): 105
Mean Size Imm] GENERAL WEIGHT kg
I 13.5
I I 105
I c__..,_
A•moCAD• DTP
,..,,,,.,._..,_ -·- ---
~
I
CLIENT:
II
PROJECT IMPLEMENTATION CONSULTANT FILENMIEITtN BAN v£ : sr.ALEIrtL(: : STATUSTlNHT~: PRO.ECTIDlf AN : HANOI PILOT LIGHT METRO LINE Sectkln NOOn - HlllOI Ralway station
i CHOEl.Wnr: Tl1 VAA THVC Hll;N DIJ AN Technical Design
~ ~
PIC-TEC-ORR-WVQ.JIM-1MlllMl_JIA.DWa - TU1N WONG sATBO rn1 rnlDlt::M TP HA NOi E>olil1 Nh&i- Ge Hill NOi
SYSTRAS.A
~ '~ HRB
DESIGNED BYITlll£'rKE: : FORtMTIKHO eANv£ : DATEINGAY: Tm.EITtN BAN v£ : NHUE RIVER CROSSING
7
~§ "' "'"'11 2nd submission of lechnlcaldes91 H G.Maurls ........ A.K A1 31/01110 lll1QT SONG NHUo
!!s 1C ....10 u~•.., H ~.Maurie ........ CIECKED BYsoAT:
1B ,...,, UPDATE>
~·
IG. Mauria
"·"""""
HANOI METROPOUTAN RAIL TRANSPORT PROJECT BOARD
Thlad-ngrnJlllnolba-IDal-.d,coplaclor-rapmcilcad DECK - BLISTER TYPE 3 - REINF - BAR LIST
q G. Mauris i1 whole ar in part or used fOr any Pll4XM8 wihoU; lh8 priorwrillBn
~ 1A 31/01/10 Fi181 l8al8
~·
G.Mauria ........ BAN OiiAN DUONG BAT 00 THI HA NOi permissiondHRB. BAN ~T cAU - BLISlER L0"'-1 3 -COT TI-l~P - DANH MVC TI-IAN
! • PROJECTDIRECTORIGIAMe0c IX/AN : CHIEFDESIGNERIa-io tt11eM Tii1£T KE: : Bin ve nQ'khOng auqc ph6p ar. d1o11g dllCI mQI hlrll tll)c, ml)I phln hay DRA'MNGNO.IBAN v£ SO :
~ B
REVISION
"'"' DESCRIPTION
""'"" ...... ClilEFOFDl!O
,,,...,
""" NQI DUNG SO'A 001 THl~ICE
"" Cl(JNIGlllETE Alain Bllchereau P.Amaud
IDAn bl), mil khOng o!uqc •II' .Dig~ ~IAln bin all. HRB.
PIC-TEC-GRR-WVO-J04-18659-B 2A
~
~
"'Ii!
!!!
11
i
~ii:
I
~ 001 15-014
V-L_ @1so
I!!
~
uw .!:
F %
!I $i
!;l 8
uB
LJ 004 1-016
0 J
 I oos 5-012
""""1-0lo
LJ 003

~ k_~Jl--1---------------------<
o006 15-012  C)~
@l150
'. .))
i i I
i i ~I I I
: I I
I I I
: ~ I
I I I
: : I
c--- I I
02A>----~,
1
-----~:---+-+--1
+-4+-----"I I
I I I
I I I
I I I
I I
I I
I I
I
028>----~
1
-----~
1
-+--~:-'"'
I I
/
/
/
/
/
/
/
~)
~---1----iO06 D
SECTION B-B
MATCATB-B
"SCALE: 1/10
TI'LI;.: 1/10
r---1 I I I
'-----J~ ___J_:_..=====:;===~'l=f==:=l===t==::::::::::=====f~/~===f=============>--oost- ' 1
: : I
I
I
I
I
I I I
: I. I I
I I I
: I. ~ I
I
/
/
I
/
/
LJ 003,.___ _ I,____.,_ _. I : /
: J:j.,,,,,,,=::f:!:=tl.~E1~~::::::::!!f:;==!===§'l:~~"::J============::r--~
I I
: I. I  /
LJoo4>--- --+-i-c~~~~.~~
1
1 ~~:~~)-~~e-i~~/~#=f=============--
1 I
I I I
I I
I I
I I
r ::;::i,r '--11 1 ,
I L.-L-J I
: :~1
i i '1--1---------4
SECTION C-C
MATCATC-C
SCALE: 1/10
TYLI;:: 1/10
I
I
o----+----+----------------+----....___....____. Q.IENT:
o----+----+----------------+----....___....____. CHOflAuru:
3" 21/11Y11
2A 3004'11
Upda111d A. K .Mowrto LI•.laing
HRB2nd aubml11lon at'lechnlcal dMlgn A.K n. Mowrto ... Arnaud
1C ~8110
18 2MIBl10
Upda111d A.K n. Mowrto ... Arnaud
UPDATED A.K . Mowrto ... Arnaud HANOI METROPOLITAN RAIL TRANSPORT PROJECT BOARD
1A 31m1110 Flr"1,_., A.K ll. Mowrto P. Arnoud BAN DI/AN llWNG sA.ra0 THI HA NQI
REVISION DATE DESCRIPTION IHIHl!BI' CllllCIDBI' l>&IHlllill
SLrAOOI Nal.Y NQI DUNGWAfJOI HIM! IOI.! IJll1t11;M1111!rl!
B
-·- -··---·- - - -·- - ~-~~~-~r---- · - - - - --···---- - - ,---
..IL 1-016 G
.I
'I
B
•PROJECT IMPLEMENTATION CONSULTANT
11 VAN THl,IC HleN DI,/ AN
SYSTRAS.A
PROJECTDIRECTOR GIAMaocDI/AN:
Alain B~cheraau
'C:; [ t---
1- D16 r
~
UJ___J__J_L_L_L__L_~~~2~~__J___----l-----jQ06 D
SECTION A-A
LSLJ
004 LJ
FILE NAA1ElTtNBAN/£:
DESIGNED BYTHli;rK£ :
A. K
CHECKED BYSlll.T:
G. Maur1s
CHIEF~IGNERCll) NHleMTH1£r Ke:
P. Amaud
MAT CATA-A
SCALETYLE:
FORMAT KHO BAN VE:
A1
SCALE: 1/10
TYLI; :1110
STAlUS TfNH~G :
Teclmical Design
DATENGAY:
31/01/10
Thil <Rwi'IDmUll:notbe eithlrlOlrled,<q>ied«otl'lll'Wile NP'Odiacl
ln wtdea h P11rt orul8dfor•nr prupmewllhoul:.. prlor'Mltsl
parmlllllonot HRB.
......My_..,.,._.......ng ..... ..,.. .... _m(llpMnt.y
....~ ...- .........~t~ '"""'" "'" """·
- NOTES : ---------------~
GHI CHIJ:
1. REINFORCEMENT YIELD STRENGTH: FY=420 MPA.
1. CllONG DO CHAY COACOT THEP fc=420 Mpa.
2. CONCRETE COVER: C=50 MM.
2. LdPBE TONG BAf> VS c=50 mm
PROJECT CVAN: HANOI PILOTLIGHT METRO LINE Sedion Nhon•HantiRailwayS1ation
TIJY£NflOONG sATElOTHITHIfll~M TPHANQI ElatnN~n · Ga Hi NOi
Tm.ETtNBANVE: NHUE RIVER CROSSING
VU'QT SONG NHUI;:
DECK - BLISTER TYPE 2 - REINF
BAN MAT cAU-BLISTER LO~l 2. cOT niiOP
DRAl'l1NGNO. BANV£so: IPIC-TEC-GRR-WVO-J04-18660-B 3A
r r
Total Lengths and Weights
.~
Number of members I
a.. TJpe No. Tot•
ltnglh~·pe ll01d
Hk illll
".... No. Cade TJPI lll111- Shope Rn. Type T Type R BENDING DIAMETERS !mm)... -- Lengths of standard hooks !mm)mm mm mm - u
Total Weight Total Total Weight Total Diameters 6 8 10 12 14 16 18 20 22 25 28
Diameter Length per unit Weight Length per unit Weight
Hooks Diameters 6 I 8 I 10 12 14 I 16 I 18 20 22 I 25
001 014 I IS IS 2550 99 2 A=605 B=267-,D56 [=896-·1036 0=584-·581 "'~ lml lkg/m) lkg) lml lkg/m) lkg) (Type 11 36 48 60 72 84 96 108 120 132 150 224
MEAN o:1=9D"o:2=75"Cl3=57"
6 0 0.222 0.00
D
Frames
~=
'"'-.., ' (Type2) 24 32 40 48 56 64 108 120 132 150 224
fbJl 8 0 0.395 0.00 .,nchora%es 72 96 120 144 168 192 216 240 264 30002A 016 I I I 3840 99 2 A=751 B=699 [=2453 Hooks (Type 1
10 0 0.617 0.00 (Type 11 0 0 0 0 0 0 0 0 0 0 0 DCl1=101°e<2=91°
ll
Frames
12 39 0.888 34.84
R
Frames ITvoe 21 0 0 0 0 0 0 0 0 0 0
fbJl
0 0 0 0 0 0 0 0 0 0 0
02B 016 I I I 3880 99 2 A=751 B=751 [=2443 14 38 1.210 46.28
(TYDl2) "nchora%es
(Type 1 72 96 120 144 168 192 216 240 264 300
0:1=101°0:2=91°
16 14 1.580 21.41 R
Frames
ciI 18 0 2.000 0.00 BAR DIMENSIONS )Type2) 0 0 0 0 0 0 0 0 0 0
003 016 I I I 2860 21 2 A=1051 B=833 [=1051
20 0 2.470 0.00 - THE DIMENSIONS ARE GIVEN ON THE OUTSIDE FIBER OF THE REBAR (SEE BELOW)
22 0 2.980 0.00
ciI
- THE TOTAL LENGTHS ARE CALCULATED ON THE BASIS OF THE CENTERLINE. "nchora%e1
004 016 I I I 2970 21 2 A=1051 B=937 [=1051 25 0 3.850 0.00 (ISO 3766•2004 - METHOD Bl (Type 1 36 48 60 72 84 96 108 120 132 150
4.830 - THE BENDING ANGLES ARE GIVEN IN DEGREES.
ff
D
Frames28 0 0.00 0 0 0 0 0 0 0 0 0 0
<
' 32 0 6.310 0.00
(Type2)
005 012 I s s 2550 99 2 A=91 B=309 C=B75 D=307 E=95B F=91 ®" lo
11~~
..nchora%e! 36 48 60 72 84 96 108 120 132 15036 0 7.990 0.00 (Type 1011=135° Ol2=72° ()13=90° Ol4=90" ()15=135° c
R
' 40 0 9.860 0.00 Frames 0 0 0 0 0 0 0 0 0 0
A=91 B=262 [=344-·731 D=2fi4 E=404-·792 F=91 :ow (Type 21
006 012 I IS IS 1765 99 2
MEAN Dl1=135° Dl1=75° Ol3=90° Dl4=90" Ol5=135°
~=
'"'-'''"
c
Type T Type R
..nchora%e
65 65 65 65 65 65 72 80 88 100Total Length - Bended: 91
,tf-
(Type 1
Total Length - Straight:
D
Frames0 0 0 0 0 0 0 0 0 0 0
Total Length (ml: 91
(!voe 21
nchora%e!
Total Weight - Bended. 102 (Type 1 65 65 65 65 65 65 72 80 88 100
R
FramesTot-al Weight- - Straight- 0 0 0 0 0 0 0 0 0 0 0
Total Weight (kg): 103
(Type 21
Mean Size Imm] GENERAL WEIGHT kg
II 13.5
I I 103
I c__..,_
A•moCAD• DTP
,..,,,,.,._..,_ -- ---
~
' CLIENT:
II
PROJECT IMPLEMENTATION CONSULTANT FILENMIEITtN BAN v£ : sr.ALEIrtL(: : STATUSTlNHT~: PRO.ECTIDlf AN : HANOI PILOT LIGHT METRO LINE Sectkln NOOn - HlllOI Ralway station
• I CHOEl.Wnr: Tl/ VAA THVC Hll;N DIJ AN PIC-TEC-ORR-WVQ.JIM-1M91-8_2oU!Wa - Technical Design
TU1N WONG sATBO rn1 rnlDlt::M TP HA NOi E>olil1 Nh&i- Ge Hill NOi
!i ~ ~ SYSTRAS.A
DESIGNED BYITlll£'r KE: : FORtMTIKHO eANv£ : DATEINGAY: Tm.EITtN BAN v£ :
~ HRB NHUE RIVER CROSSING
'~ A.K A1 31/01110 lll1QT SONG NHUo7
~§ "' "'"'11 2nd submission of lechnlcal des91 H 3.Maurls
-"""""
!!s 1C ....10 UM•'"' H IG. Maurta
-""""" CIECKED BYsoAT: Thlad-ngrnJlllnolba-IDal-.d,coplacl<r-rapmcilcad DECK - BLISTER TYPE 2 - REINF - BAR LISTHANOI METROPOUTAN RAIL TRANSPORT PROJECT BOARD
q 1B ,...,, UPDATE>
~·
jG. Mauria
'"""""" G. Mauris i1 whole ar in part <r used far any prl4)Ca wihoU; lh8 priorwrillBn
BAN ~T cAU - BLISlER L0"'-1 2 -COT TI-l~P - DANH MVC TI-IAN
~ 1A 31/01/10 Fi181 l8al8
~·
3.Mauria
·""""" BAN OiiAN DUONG BAT 00 THI HA NOi permissiondHRB.
! •
""'"" ...... PROJECTDIRECTORIGIAMe0c IX/AN : CHIEFDESIGNERIa-iott11eM Tii1£T KE: : Bin ve nQ' khOng auqc ph6p ar. d1o11g dllCI mQI hlrll tll)c, ml)! phln hay DRA'MNGNO.IBAN v£ SO :
~ B
REVISION
"'"' DESCRIPTION ClilEFOFDl!O IDAn bl), mil khOng o!uqc •II' oD!g ~ ~IAln bin all. HRB.
PIC-TEC-GRR-WVO-J04-18661-B
''""" """ NQI DUNG SO'A 001 THl~ICE ... Cl(JNIGlllETE Alain Bllchereau P.Amaud 2A
~
~
"' I!!
Ii'! ~
!!!
u11
i w .!:
F %
!I $i
!;l 8
~ uii: B
v--'-i__.001 15-014
(iil150
1
~ /c:::::::J
005 5-012
~
(iil150
0006 15 012
(iil150
~~ "--...l)
I
C:J 005
u@ 1-01&
LJ 0 1-016
I
0 J
I
~ I
~
f"'!---_
k-
u
0n
11_ ~1
004 LJ
003 LJ
.~ ~11
u
- - -
SECTION B-B
MATCATB-B
·scALE: 1110
TYLl;:1/1D
c:--
1--+---+++------<- - - - - - - - --+-1Q2B
c::--
114----+------------'>-I02A
SECTION C-C
MATCATC-C0
SCALE: 1/10
TYLl;:1/1D
o--~-+-~~+--~~~~~~~~~~~~~_._~~~...._~__......_~__. Q.IENT:
o--~-+-~~+--~~~~~~~~~~~~~_._~~~...._~__......_~__. CHOflAuru:
3" 21/11Y11 Upda111d
2A 3004'11 2nd aubml11lon at'lechnlcal dMlgn
A.K .Mowrto . Jalng
HRBA . K n . Mourto ... Arnaud
1C ~8110 Upda1ad
18 2MIBl10 UPDATED
A . K n . Mourto ... Arnaud
A . K . Mowrtl ... Arnaud HANOI METROPOLITAN RAIL TRANSPORT PROJECT BOARD
1A 31m1110 Flr"111a» A . K ll. Mowrtl P. Arnoud BAN DI/AN llWNG sAra0 THI HA NQI
REVISION DATE DESCRIPTION IHIHl!BI' CllllClllBI' l>&IJ"lllllill
SLrAOOI Nal.Y NQI DUNGWAfJOI HIM! IOI.! otl1t11;M1111!rl!
•PROJECT IMPLEMENTATION CONSULTANT
11 VAN lHIJC HleN DIJ AN
SYSTRAS.A
PROJECTDIRECTORIGIAMaocDI/AN:
Alain B~cheraau
(
FILE NAA1ElTtNBAN/£:
DESIGNED BYTHli;rK£ :
A. K
CHECKED BYSlll.T:
G. Maur1s
CHIEF ~IGNERCll) NHleMTH1£r Ke:
P. Amaud
· - ·- - - - --.---------- ---
003 LJ
SECTION A-A
M~T CAT A-A
SCALE TYLE:
FORMATKHO BAN VE:
A1
STAlUS TfNH~G :
Teclmical Design
DAlEINGAY:
31/01/10
Thil <Rwi'ID mUll:notbe eithlrlOlrled,<q>ied«otl'lll'Wile NP'Odiacl
ln wtdeah P11rtorul8dfor•nr prupmewllhoul:.. prlor'Mltsl
parmlllllonot HRB.
......My_..,.,._.......ng ..... ..,.. .... _m(llpMnt.y
.... ~ ... - ........~t~,,.,, ...... HRB.
SCALE: 1/10
TY L!;: 1/10
- NOTES : --------------~
GHI CHIJ:
1. REINFORCEMENT YIELD STRENGTH: FY=420 MPA.
1. CllONG DO CHAY COACOT THEP fc=420 Mpa.
2. CONCRETE COVER: C=50 MM.
2. LdP BE TONG BAf> VS c=5D mm
PROJECT CVAN: HANOI PILOTLIGHT METRO LINE Sedian Nhon•HantiRailway S1ation
TIJY£N flOONG sATElOTHITHIfll~M TPHANQI ElatnN~n · GaHi NOi
Tm.ETtNBANVE: NHUE RIVER CROSSING
VU'QT SONG NHUI;:
DECK - BLISTER TYPE 1 - REINF
BAN MAT cAU-BLISTER LO~l 1. c0TTHIOP
DRAl'l1NGNO.' BANV£so: IPIC-TEC-GRR-WVO-J04-18662-B 3A
c c c
Boe Type No
No
Toto1 IL th Shope Bendafbar
marK "d of 1nea(h No eng Code Type D1mens1ons Shape
"'" REBARS WEIGHT BENDING DIAMETERS Imm)size memb memb
Lengths of standard hooks Imm)mm mm mm
" Number of members 1 Diameters 6 B 10 12 14 16 1B 20 22 25 28
-~
Hooks Diamet-ers 6 8 10 12 14 16 18 20 22 25
001 014 1 15 15 2620 99 2 !Type 1) 36 48 60 72 84 96 108 120 132 150 224
MEAN Acier HA D
~"" one ....... BlNH ' HA ITlf lh&p Frames
24 32 40 48 56 64 108 120 132 150 224
Tot-al Total
(Type 2) nchor<iges
72 96 120 144 168 192 216 240 264 300Total Unit Total Unit Hooks (Type 11A=110 B=605 (=617->101 D=102a-.a7B E=5B4
Diameter length weight weight- length weight weight 0 0 0 0 0 0 0 0 0 0 0!Type 1) 0
0:1=180° o:Z=90° 0:3=75° 0:4=57° lml (kg/ml lkg) lml lkg/m) lkg) R
~
Frames
0 0 0 0 0 0 0 0 0 0Frames
0 0 0 0 0 0 0 0 0 0 0
!Type 2)
~
6 0 0 222 0.00 (Type 2) "'nchor<iges02A 016 1 1 1 3750 99 2 A=801 B=658 [=2358 72 96 120 144 168 192 216 240 264 300
0:1=102°()[2=89° 8 0 0.395 0 00 (Type 11
R
10 0 D.617 0.00 BAR DIMENSIONS
Frames 0 0 0 0 0 0 0 0 0 0
016 1 1 1 3810 99 2
~ 31.91
!Type 2)
028 A=801 B=713 C=2357 12 36 0.888
0!1=102°0!2=89°
14 39 1.210 47.55
- THE DIMENSIONS ARE GIVEN ON THE OUTSIDE FIBER OF THE REBAR (SEE BELOW I
cl 16 13 1.580 21.11
- THE TOTAL LENGTHS ARE CALCULATED ON THE BASIS OF THE CENTERLINE '-'nchorages
(ISO 3766 2004 - METHOD Bl 36 48 60 72 84 96 108 120 132 150OOJ 016 1 1 1 2870 21 2 A=10S1 B=B44 C=10S1 (Type 1)
18 0 2.000 0.00
- THE BENDING ANGLES ARE GIVEN IN DEGREES
~
0
Frames
cl
20 0 Z.4 70 0.00 !Type 2)
0 0 0 0 0 0 0 0 0 0
004 016 1 1 1 2930 21 2 A=10S1 B=90Z (=1051 22 0 2.980 0.00
0~1i
'-lnchorages
- (Type 1)
36 48 60 72 84 96 108 120 132 150
25 0 3.850 0 00 R
Frames
. ' 28 0 4 830 0.00 !Type 2)
0 0 0 0 0 0 0 0 0 0
005 012 1 5 5 2430 99 2 A=90 B=936 C=264 D=B66 E=163 F=90 "'' lo
~I/0!1=135° 0!2=90° 0!3=90° Ct:4=72° et:5=135°
,
tJ Medium diameter Imm) 136 lnchorages
65 65 65 65 65 65 72 80 88 100006 012 1 15 15 1585 99 2
F
(Type 1)
Bend bar length (m) 89 0MEAN Frames
~""
'"'....... BlNH , Straight bar length [m] 0 0
!Type 2)
0 0 0 0 0 0 0 0 0 0
A=90 B=263 [=656-•142 D=204 E=719-•303 F=90 Total length (m) 89 '-lnchorages
"' (Type 1)
65 65 65 65 65 65 72 80 88 100
a1=135° a1=75° a3=90° a4=90° et:S=135° Bend bar weight lkg) 101 R
Frames
0 0 0 0 0 0 0 0 0 0Straight bar weight lkgl 0 ,, !Type 2)
Total weight (kg) 101
I Total weight for one member [kg) I 101 I
I Total weight for all members (kg) I I
~
101
[
Arma(AD• - OTP -
Arm•CAD• - DTP - Arm•CAD• - OTP - Arm•CAD• -DTP-
~
' CLIENT:
II
PROJECT IMPLEMENTATION CONSULTANT FILENMIEITtN BANv£ : sr.ALEIrtL(: : STATUSTlNHT~: PRO.ECTIDl/ #.! : HANOI PILOT LIGHT METRO LINE SectkJn NOOn - HlllOI RBlway station
~ I CHOEl.Wnr: Tl1 VAA THVC Hll;N DIJ AN PIC-TEC-ORR-WVQ.JIM-1-.S_JIA.DWa - Technical Design
TU1N WONG sATBO rn1 rnlDlt::M TP HA NOi E>olil1 Nh&i- Ge Hill NOi
! ~ ~ SYSTRAS.A
DESIGNED BYITlll£'rKE: : FORtMTIKHO eANv£ : DATEINGAY: Tm.EITtN BAN v£ :
~ HRB NHUE RIVER CROSSING
'~ A.K A1 31/01110 lll1QT SONG NHUo7
~§ "' "'"'11 2nd submission of lechnlcaldes91 H 3.Maurls
·"""'""
!!s 1C ....10 UM•'"' H IG. Maurta
·"""'"" CIECKED BYsoAT: Thladr-ingrnJlllnolba-IDar-.d,coplaclor-rapmcilcad DECK - BLISTER TYPE 1 - REINF - BAR LISTHANOI METROPOUTAN RAIL TRANSPORT PROJECT BOARD
q 1B ,...,, UPDATE>
~·
jG. Mauria
"·"""'"" G. Mauris i1 whole ar in part or used for any prl4)Ca wihoU; lh8 priorwrillBn
BAN ~T cAU - BLISlER L0"'-11 -COT TI-l~P - DANH MVC TI-IAN
~ 1A 31/01/10 Fi181 l8al8
~·
3.Mauria
·"""'"" BAN OiiAN DUONG sAT00 Tiii HA N()I permissiondHRB.
! •
""'"" -· PROJECTDIRECTORIGIAMe0c IX/AN : CHIEFDESIGNERIa-iott11eM Tiii~ KE: : Bin ve nQ' khOng auqc ph6p ar. d1o11g dllCI mQI hlrll tll)c, ml)! phln hay DRA'MNGNO.IBAN v£: SO :
I2A~ B
REVISION
""'
DESCRIPTION ClilEFOFDl!O IDAn bl), mil khOng o!uqc •II' .Dig~ ~IAln bin all. HRB.
PIC-TEC-GRR-WVO-J04-18663-B
"''"' "'" NQI DUNG SO'A 001 THl~ICE
"" Cl(JNIGlllETE Alain Bllchereau P.Amaud
-
[]8 2x1-016
c:J@ 1-016
c=J@ 1-016 I/ /,
0
D
SECTION 8-B
MAT CAT B-B
I/ ' , ".>
SCALE: 1/10
Ti'LE: 1110
- '
~
- .'
]
- "'~
1
'
~
~
@ @
[] D L:J
SECTION C-C
M~TCATC-C
SCALE: 1/10
Ti' LE: 1/10
'-~ · - ,....----- , - r-- ' - ...----- ' - ....-----
~
[=9 j,_
I
?
I P4it-
t
I
N-----11
~ 0
(o01' 1<4:: D
t
I
00 4SECTION A-A
M~T CAT A-A
SCALE: 1/10
TYLS: 1/10
~~
NOTES : ~~~~~~~~~~~~~~
GHI CHIJ:
1. REINFORCEMENT YIELD STRENGTH: FY=420 MPA.
1. CllONG DO CHAY COACOT THEP fc=420 Mpa.
e 2. CONCRETE COVER: C=50 MM.
i!'i 2. LdP BE TONG BAf> VS c=50 mm
I
~r----.~.----.~~~~~~~~---,.-~.---~.--~.--~~~~~~~~~--r:===-~~~~~~~~====~=-~~...--""'="':--~~~----:-~~-r-~~.J.._~~~~~~~~~~__J~
t----+----+-------------_.____..._______, Q.IENT: • PROJECT IMPLEMENTATIONCONSULTANT FILE NAA1ElTtNBAN/£: SCALETYLE: STAlUS TfNH~G : PROJECT CVAN: HANOI PILOTLIGHT METRO LINE Sedian Nhon.HantiRailway S1atial
'' I!!
~ ~I!
ut
i w g
F %
!I $i
!;l 8
~ uii: B
t----+----+-------------_.____..._______, CHO flAu T1: , T1 VAN THl,IC HleN DI,/ AN PIC.rcc<;R,.....,,.,,,,..11171>1U"DWG Teclmical Design TllY£N flOONG 8>.T00llilTHIfll~M TPHANQI E!atn N~n .Ga Hi NOi
3" 21/11Y11 Upda111d
2A 3004'11 2nd aubml11lon at'lechnlcal dMlgn HRBA.K
A . K
1C ~8110 Upda1ad A . K
18 2MIBl10 UPDATED
1A 31m1110 Flr"111a»
A . K HANOI METROPOLITAN RAIL TRANSPORT PROJECT BOARD
t----+----+---------------4-,.-.K_ __.__ _-+----l BAN DI/AN llWNG sA.rllOTHI llANQI
REVISION DATE
SLrAOOI Nal.Y
DESCRIPTION
NQI DUNGWAfJOI
IHIHl!BI'
HIM!
CllllClllBI'
IOI.!
SYSTRAS.A
DESIGNEDBYTH1£TK£: FORMATKHOBANVE: DAlENGAY : Tm.ETtNBANl/E: NHUE RIVER CROSSING
A. K A1 31/01/10 VU'QT SONG NHUI;:
CHECKED BYIS!ll.T: Thil-gm1111notbo1-1...ec1._«___ DECK- DEVIATOR TYPE1 - REINF
G. Maurts :.:::~~~ul8dtor•nrprupmewllhoul._pr1cr'Mltsl BAN ~T cAU - BO CHUYl:.N HU'O'NG LO~l 1 -C0T11i~P
CHIEFDESIGNERCll) NHleMlll1£rK£: ..,,..n0y _..,.,. _.,. "'ng....,""'"""- '""'iHn11ey DRAl'l1NGNO.BAN V£SO:
P. Amaud .,..~ ... -..,.,..,~t~'""""'"'" """· PIC-TEC-GRR-WVO-J04-18670-B 3A
PROJECTDIRECTORGIAMaocDI/AN:
Alain B~cheraau
Total Lengths and Weights
lft"l!F.i
Number of members I
e.. Tohl ·~- Bmd
.... ..i of ... No. ~."' Code lft" - Shope Rn. Type T Type R BENDING DIAMETERS Imm!
... - - Lengths of standard hooks (mm!
Tot-al Weight Total Total Weight Total Diameters 6 B 10 12 14 16 1B 20 22 25 28
"
Diameter Length per unit Weight Length per unit Weight
Hooks Diameters 6 I 8 I 10 12 I 14 16 18 I 20 22 I 25
001 020 1 l l 5370 99 2 -i I, lml lkg/m) (kg) lml lkg/m) lkg) !Type 11 l6 48 60 T2 84 96 108 120 1l2 150 224
" 6 0 0.222 0.00
D
Frames 24 l2 40 48 56 64ITvoe 21 108 120 1l2 150 224
8 0 O.l95 0.00 nchora%es
A=3DD B=la36 [=550 0=1957 E=569 F=3DD Hooks (Type 1 T2 96 120 144 168 192 216 240 264 lOO
10 0 0.617 0.00 !Type 11 0 0 0 0 0 0 0 0 0 0 0 Dr>1=135" <>2=90° o:l=90" <>4=108° o:5=135'
R
~
Frames
Q
12 0 0.888 0.00 Frames ITvoe 21 0 0 0 0 0 0 0 0 0 0
ITvoe 21 0 0 0 0 0 0 0 0 0 0 0
001 016 1 8 8 2080 99 2 A=400 B=550 14 0 1.210 0.00 nchora%e
(Type 1 T2 96 120 144 168 192 216 240 264 lOO
16 46 1.580 T2.l8 R
Q 18 0 2.000 0.00 BAR DIMENSIONS Frames 0 0 0 0 0 0 0 0 0 0
003 016 1 8 8 1840 99 2 A=400 B=432
(Tvne 2)
20 16 2.470 39.79 - THE DIMENSIONS ARE GIVEN ON THE OUTSIDE FIBER OF THE REBAR ISEE BELOW)
Q
22 0 2.980 0.00 - THE TOTAL LENGTHS ARE CALCULATED ON THE BASIS OF THE CENTERLINE. nchora%e!
04A 016 1 1 1 5310 99 2 A=60D B=l967 25 0 l.850 0.00 llSD l766•2004 - METHOD Bl (Type 1 l6 48 60 T2 84 96 108 120 1l2 150
28 0 4.8l0 0.00 - THE BENDING ANGLES ARE GIVEN IN DEGREES.
ff
D
Frames
Q
ITvoe 21
0 0 0 0 0 0 0 0 0 0
l2 0 6.l10 0.00 A E
04B 016 1 1 1 5100 99 2 A=600 B=l864 nchora%e!
l6 0 7.990 0.00 ., (Type 1 l6 48 60 T2 84 96 108 120 1l2 150
Q
40 0 9.860 0.00
R
Frames
ITvoe 21
0 0 0 0 0 0 0 0 0 0
005 016 1 2 2 2020 99 2 A=562 B=l62
Type T Type R
nchora%e!
Total Length - Bended: 62
,tt- !Type 65 65 65 65 65 65 72 80 88 100
Total Length - Straight-: 0
D
Frames
" )Tvoe 21 0 0 0 0 0 0 0 0 0 0
Tot-.::il Length (ml 62
nchora%e!
Tot-.::il Weight - Bended 112 !Type 65 65 65 65 65 65 72 80 88 100
Tot-al Weight- - Straight-· 0
R
Frames 0 D 0 0 0 0 0 0 0 0
Tot-al Weight- (kg) 112
)Tvoe 21
Mean Size [mm] GENERAL WEIGHT kg
I 17.1 I I 112 I c__..,_
••m•CAD• DTP
,
""""*'-11P- - _..,_
~
~ CLIENT:
11
FILENAMET~ BAN v£ : SCALEITY'L~: STA.Ml TfNH~:
•
PROJECT IMPLEMENTATION CONSULTANT PROJECTIJJJ.l.l: HANOI PILOT LIGHT METRO LINE Sacllon Nhon- HlllOI Rallway 5'allan
CH0auTll: Tl/VANTHl/CHleN DI/AN Technical Design
' • PIC-TEC-GRR-WV0.1134-18871-6..)ADWG - ~N WONG sAT 90 THI THI Dli:M TP HA. NOi eo.nf'li&i- Ga Hi NOi
n SYSTRAS.A
DESIGNEDBYITHtrK£: FORtMTIKHO BAN v£ : DA.lEINGAY:
i ~ HRB
Tm.EIT~BANv£: NHUE RIVER CROSSING
2A 30/04/11 2nd 11ubmi11ion of technical d81ign A.K l->.Mauril b,"'"'"'
A.K A1 31/01/10 VU'O'T SONG NHUE
••~ s 1C
"'"'"
,,,.,..., A.K ...... b."'"'"' CIECKED BYSoAT:
" 23I08/10 "PDATE> A.K ...... ·"'"""'
HANOI METROPOUTAN RAIL TRANSPORT PROJECT BOARD
This drawing must not be eilher loaned, aopied orolhl!lrwi88 reproO.ioed DECK· DEVIATOR TYPE1 - REINF - BAR LIST
•• G. Maurts In whDB or In part or UHd tr.,r prupomwttlDllltlll prlorwrHBn
p 1A 31/01/10 Fi181 llal8 A.K F., Mauril
"·"'"""' BAND~ AN SOONG sAT !JO THI HANOi permlukln<IHRB. BAN M~T CAU - BO CHUY!=:N HU'6NG L0"-11 - COT THEP- DANH L1
0. REVISION
"'" """""'"'
...... ..... ........ PRO.ECTDIRECTORIGIAM00C CfJAN : CIEFCESIGNERIa-10 NICMTiii~ K£ : e•nv1 nlrkhOng ~pimp lird~ng duUlrn;il t1rt1-,rn0tlll*i toiy DRAWING NO.IBAN vi:SO :
I2A~ ;l SCrAElOI
""'' NQI DUNO SCrAElOI
""'" "" Clllitil;MTIElll: Alain B6chereau P.Amaud
IDir1 tJO, mi khOng ~ 8'/ d6ng j bang~ '*1 cUa HRB.
PIC-TEC-GRR-WVO-J04-1B671-B
1,JC HANH
~
~
'' I!!
~ ~I!
ut
i w g
F %
!I $i
!;l 8
~ u... B
 .{

I/
I I
D
9
1
L-
I
IJ
D~
c.,!.
'--
-
-
tO~
n
-
·~
[/,'. .
=
'
=
~
~
~
A~
09 9
Dr----7 ~
SECTION C-C
MATCATC-C
·scALE: 1110
TYL!;: 1/10
I
I
I
I
I
L---L------1--------------4----1-----+----I Q.IENT:
L---L------1--------------4----1-----+----ICHOflAuru:
3" 21/11Y11 Upda111d
2A 3(WU11 2nd aubml11lon at'lechnlcal dMlgn
A.K ll.Mowrto . Jalng
HRBA . K " . Mlwrtl D , ArnolJd
1C ~8110 Upda111d
18 2MIBl10 UPDATED
A . K " . Mlwrtl D , ArnolJd
A . K ll. Miwrto "Arnaud HANOI METROPOLITAN RAIL TRANSPORT PROJECT BOARD
1A 31m1110 Flr"111a» A . K G. Mowrtl P. Arnaud BAN DI/AN llWNG sA.Ta0 THI HA NQI
REVISION DATE DESCRIPTION IHIHl!BI' CllllClllBI' l>&IHlllill
SLrAOOI Nal.Y NQI DUNGWAfJOI HIM! IOI.! otl1t11;M1111!rl!
'--··-~- -- - - ....-------- -,..------ -....-------- ~ --- · - - - - - - - -
D
I~
qt• ~ 'i ,_ ~ 11 I~
(
 1..-
L-
L- '---
~
1--
I
~ 1--
J...- ~
---C--
I _ -
2,._
•PROJECT IMPLEMENTATION CONSULTANT
11 VAN THl,IC HleN DI,/ AN
SYSTRAS.A
PROJECTDIRECTORGIAMaocDI/AN:
Alain B~cheraau
@q~
++--
~
~·~
-
I
~ ,__ ,__
I
FILE NAA1ElTtNBAN/£:
L J.- -
. - I---
~"l
L---
i.-
i.-._ [.--
1--
L..
1-
0n4
SECTION A-A
MAT CAT A-A
'SCALE : 1/10
TY L!;: 1/1 0
~~',.__
~~

SCALE TYLE: STAlUS TfNH~G :
b
)
Teclmical Design
DESIGNED BYTHli;rK£:
A. K
FORMATKHO BAN VE:
A1
DATENGAY:
31/01/10
CHECKED BYSlll.T: Thil-D mu1tnotbo 1-1...ec1._«_ __
G. Maurts 1n wto1eahP11rtorul8dfor•nrprupmewllhoul:._prkr'Mltsl
1 - - - - - - - - - - - 1 parmlllllonotHRB.
CHIEF ~IGNERCll) NHleMlll1£r Ke: eon..n0y _..,.,._.,. "'na....,,""'"""- m(lljHnt.y
P. Amaud .,..~ ... -..,.,..,~t~ ,,.,,..,, ..."""·
- NOTES : -------------~
GHI CHIJ:
1. REINFORCEMENT YIELD STRENGTH: FY=420 MPA.
1. CllONG DO CHAY COACOT THEPfc=420 Mpa.
2. CONCRETE COVER: C=50 MM.
2. LdP BE TONG BAf> VS c=50 mm
PROJECT CVAN: HANOI PILOTLIGHT METRO LINE Sedion Nhon•HantiRailway S1ation
TIJY£NflOONG sATElO THITHIfll~M TPHA NQI Batn N~n · Ga Hi NOi
Tm.ETtNBANVE: NHUE RIVER CROSSING
VU'QT SONG NHUI;:
DECK- DEVIATOR TYPE2 - REINF
BAN ~T cAU • BO CHUYl:.N HU'O'NG LO~I 2 ·COT THl:.P
DRAl'l1NGNO. BANV£so: IPIC-TEC-GRR-WVO-J04-18672-B 3A
Total Lengths and Weights
lft"l!F.i
Number of members I
e.. Tohl ·~- Bmd
.... ..i of ... No. ~."' Code lft" - Shope Rn. Type T Type R BENDING DIAMETERS Imm!
... - - Lengths of standard hooks (mm!
"
Tot-al Weight Total Total Weight Total Diameters 6 B 10 12 14 16 1B 20 22 25 28
s~:::::J,
Diameter Length per unit Weight Length per unit Weight
Hooks Diameters 6 I 8 I 10 12 I 14 16 18 I 20 22 I 25
001 020 1 8 8 5930 99 2 lml lkg/m) (kg) lml lkg/m) lkg) !Type 11 l6 48 60 T2 84 96 108 120 1l2 150 224
MEAN
6 0
D
'~"
GTleJ' inw• BlNH " 0.222 0.00 Frames 24ITvoe 21 l2 40 48 56 64 108 120 1l2 150 224
8 0 O.l95 0.00 nchora%es
A=3DD B=l67B [=BB7->95D 0=1905->1925 E=923->9B9 Hooks (Type 1 T2 96 120 144 168 192 216 240 264 lOO
=lDO 10 0 0.617 0.00 !Type 11 0 0 0 0 0 0 0 0 0 0 0 D
R
~
Frames
ol·m·oMO'oMO'"'·100' oO·m'Q 12 0 0.888 0.00 Frames 1Tvoe21
0 0 0 0 0 0 0 0 0 0
ITvoe 21 0 0 0 0 0 0 0 0 0 0 0
001 016 1 8 8 2690 99 2 A=400 B=B56 14 0 1.210 0.00 nchora%e
(Type 1 T2 96 120 144 168 192 216 240 264 lOO
• 16 6l 1.580 99.60 R
d 18 0 2.000 0.00 BAR DIMENSIONS Frames 0 0 0 0 0 0 0 0 0 0
003 016 1 8 8 2575 99 2 A=95D-·BB7 B=525
(Tvne 2)
MEAN
20 47 2.470 117.18 - THE DIMENSIONS ARE GIVEN ON THE OUTSIDE FIBER OF THE REBAR ISEE BELOW)
'~' CHll;l m.,, BlNH
22 0 2.980 0.00
t/=:d1
- THE TOTAL LENGTHS ARE CALCULATED ON THE BASIS OF THE CENTERLINE. nchora%e!
004 016 1 l l 2140 99 2 A=147 B=1a57 [=147 25 0 l.850 0.00 llSD l766•2004 - METHOD Bl (Type 1 l6 48 60 T2 84 96 108 120 1l2 150
0!1=135" Cl2=1l5"
28 0 4.8l0 0.00 - THE BENDING ANGLES ARE GIVEN IN DEGREES.
ff
D
Frames
Q
ITvoe 21
0 0 0 0 0 0 0 0 0 0
l2 0 6.l10 0.00 A E
05A 016 1 1 1 5240 99 2 A=600 B=l932 nchora%e!
l6 0 7.990 0.00 ., (Type 1 l6 48 60 T2 84 96 108 120 1l2 150
Q
40 0 9.860 0.00
R
Frames
ITvoe 21
0 0 0 0 0 0 0 0 0 0
DOB 016 1 1 1 5010 99 2 A=60D B=IS17
Q
Type T Type R
nchora%e!
006 016 1 1 1 2270 99 2 A=562 B=486 Total Length - Bended: 110
,tt-
!Type 65 65 65 65 65 65 72 80 88 100
Total Length - Straight: 0
D
Frames
Q " )Tvoe21 0 0 0 0 0 0 0 0 0 0
007 016 1 1 1 1980 99 2 A=562 B=l40
Tot.::il Length (ml 110
nchora%e!
Tot.::il Weight - Bended 217 !Type 65 65 65 65 65 65 72 80 88 100
Tot-al Weight- - Straight· 0
R
Frames 0 D 0 0 0 0 0 0 0 0
Tot-al Weight- (kg) 217
IT••e 21
Mean Size [mm] GENERAL WEIGHT kg
I 17.8 I I 217 I c__..,_
••m•CAD• DTP
,
""""*'-11P- - _..,_
~
~ CLIENT:
11
FILE NAMET~ BAN v£ : SCALEITY' L~: STA.MlTfNH~:
•
PROJECT IMPLEMENTATION CONSULTANT PROJECTIJJJ.l.l: HANOI PILOT LIGHT METRO LINE Sacllon Nhon- HlllOI Railway 5'allan
CH0auTll: Tl/VANTHl/CHleN DI/AN Technical Design
• PIC-TEC-GRR-WVO.I04-'IB873-6..)ADWG - ~N WONG sAT 90 THI THI Dli:M TP HA. NOi eo.nf'li&i- Ga Hi NOi
n SYSTRAS.A
i ~ HRB
DESIGNEDBYITHtrK£: FORtMTIKHO BANVE : DAlEINGAY: Tm.ET~BANVE: NHUE RIVER CROSSING
2A 30/04/11 2nd 11ubmi11ion of technical deeign A.K l->.MauriB b........ A.K A1 31/01/10 VU'O'T SONG NHUE
••~ s 1C
"'"'" """'""' A.K ...... b........ CIECKED BYSoAT:
" 23I08/10 "PDATE> A.K ...... ........ HANOI METROPOUTAN RAIL TRANSPORT PROJECT BOARD
This drawing must not be eilher loaned, aopied orOlhl!lrwi88 reproO.ioed DECK • DEVIATOR TYPE2 - REINF - BAR LIST
•• G. Maurts In whDlll or In part or LIHd tr.,r prupomwttlDllltlll prlorwrllllln
p 1A 31/01/1D Fi18118a111 A.K F., MauriB
"·""""" BAND~ AN SOONG sAT !JO THI HA NOi permlukln<IHRB. BAN M~T CAU - BO CHUY!=:N Hlf6NG L0"-12- COT THEP- DANH L1
0. REVISION
"'" """"'""'
...... ..... ........ PRO.ECT DIRECTORIGIAM 00C at,r AN : CIEFCESIGNERIa-10 NICM Tiii~ ~ : e•nv1 ..,.111101111 ~pimp lird~ng duUlrn;il tlrtllt(ft:,rnOllll*i toiy DRAWING NO. IBAN v£SO :
I2A~ ;l SCrAElOI
""'' NQI DUNO SCrAElOI .... "" Clilitil;MTIElll: Alain B6chereau P.Amaud
toin tJO, mi khOl'IQ ~ 8'/ "6na j tial'l(I ~ '*1 cUa HRB.
PIC-TEC-GRR-WVO-J04-1B673-B
1,JC HANH
~
~
'~
l!;
n~ ~ ~
7
i ~
! ! ti
~~~ ~ ',!!
~ n0..
15
I I I i I I I
15
I I I I I I 1'20Clo I I I I I I I
1
11 I I I I I I
1
3B500 I !500b I 38f00
rn 4950 200C 3000 3000
1
3000 3000 3000 3000 I 3000 3000 3000 4500 4500 3000 3000 3000 I 3000 3000 3000 3000 I 3000 3000 200( 3000 3000 I 3000 3000 3000 3000 I 3000 3000 3000 4500 4500 3000
1
3000 3000 I 3000 3000 3000 3000
1
3000 3000 ~00 4950 rn
z
I I I I.., x
y i 11111111i<:111llll S1 1-sAll SAS' SA7' SAS' ~ ~ SA3':..=.-, I~ ~r
I "
1>1 I ~
I~I~ I~ ~ I~ l,sAZ: oSA8 SA9 S3 SB9 ~ ~ SB!io SB!L s~ s~ ~
~l
I":;.: I ::ilIT" ~in- 1~3' 1,-®4' I~ SB6' SB7' SB8' ~ S2 1111111111111111111
~
·~1111u.
PHANElOANSO
CHAINAGE
Lytrlnh
0
~ i~1~·H-TAi A
1
TOP BLlstER
B~ NEOfllNH
CHAINAGEAT
LY TRINH TAI
BOTTOM BLISTER
Bl;: NEOflAY
LEGEND
GHICHO
~
43A
=
ES1
0
0
~
I
I ~
"'"""
@
...PASSIVE END
ElAU THl,IflQNG
<l:1llACTIVE STRESSING END
ElAU TAO (ING SUAT CHOflQNG
SA9' SAS'
80
80
5! ~
SA7' SA6' SA5' SA4' SA3' SA2' SA1'
0
8 80
0
8 80
80
80
0
8
:,!! ~ N
N
II)
N
QO
N ;;; .....
"'
~I ~I0
~
0
~
0
~
0
~
N .....N
"""N
0
""
~
~J~j
t----+----+--------------+----t--------t CLIENT:
1----+----+--------------+---1----+-----1 CHOEIAUnr:
2A 3MJ.1111 2nd .subml111lon ofl&dinlcaldea9'1 A. K
L LJ
PS1 SA1 SA2 SA3
8 ~I ~1
0
8 8 88 0 0 0
!:; g!! ~
"' ~ ~ f(!!.....
~I
0
~QO
.....
I
0 0 0
~ 11! 11!CD
"' &!J..... .....
I
I
I
HRB
=
L LJ
SA4 SA5 SA6 SA7 SAS SA9 S3 SB9 sea SB7 SB6 SB5 SB4 SB3 SB2 SB1 PS2 SB1' SB2' SB3' SB4' SB5' SB6' 587' SB8' SB9' ES2
il~lo
8 0 0 0 0 0 0 0 0
8 ~8 8 8 8 8 0 0
8 8 8 8 8 8 8 8 0
8 8 8 8 8 8 8 88 8 8 ~~~ ~ ~0 0 0 0 0 0 0 0 0 0 0 0 0
- :!: """
0
"' CD
"' N
:i8 :8 CD C2> ~ 0 N
le ~ CD ~ Si ~ ~ :§!
"' 5? 5? 5! 5! - - ~ ~ ~ ~ ~ ~
""" """ "' - - -
ml II ~I II I
I
0 0 0 0 0
I
0 0 0 0 0 0 0 0 0 0 0 QO QO QO 00 N
11! ~ 11! 11! ~ ~ ~ ~ ~ ~ ~ "" ~ 12 8
~-i8 lH u; .....
"""
0
"' CD en N I()
- - ~CD
"""
QO QO 00 00
"' a>
- - -I
34 L@L®
® @
®J@j 34
I
I li ~ ~
l @@
448
II
LONGITUDINAL ELEVATION
MAT CAT DOC
• SCALE : 1/200
TYLS: 11200
NOTES:~~~~~~~~~~~~~~~~~~~~~~~~~~~~~~~~~~~~~~~~~~~~~~~~
GHICHO
-ALL DIMENSIONS ARE IN MILLIMETERS.
TATcA cAc KICH THllOC THEOflON VI MM.
- FOR GENERAL NOTES REFER SEPARATE DRAWING.
flOI VO'! cN:; GHI CHO CHUNG, THAM KHAO BAN VE RU:NG
- FOR DETAILS OF BLISTERS REFER CONCRETE OUTLINE DRAWINGS.
flOI VO'! CHI ni;T COA BLISTERS, THAM KHAo cAc BANVE ~T BANG
- FOR TENDON PLAN VIEW AND ELEVATION LAYOUT REFER TO PIC-TEc-GST-WVO-J00-16401-B &PIC-TEC-GST-WVO-J00-16407-B.
flOI VO'!Ml!T BANGVAMl!T ElO'NG COA TAO cAPXIN HAYTHAM KHAOPIC-TEC-GST-WVO-JOIH8401-6 & PIC-TEC-GST-WVO-JOIH 8407-B.
- FOR TENDONS SETTING OUT REFER TO PRESTRESSING CROSS-SECTION DRAWING PIC-TEC-GST-WVO.J00-18410-B & PIC-TEC-GST-WVO-J00-16419-B.
vev;ec BO TRI cACTAO cAP XIN HAY THAM KHAO BAN ve cAT NGANG(ING SUAT PIC-TEC-GST-WVQ..JOIH841D.a & PIC-TEC-GST-WVQ..J0().18419-8.
- FOR PRESTRESSING DETAILS AND SEQUENCES REFER TO PIC-TEC-GST-WVO-J00-16408-B.
fl01 VOi cN:; CHI Ti£TVA cAc CHUOl liNG suAT XIN HAY THAM KHAO PIC-TEC-GST-WVQ..J0().18408-8.
- FOR METHOD OF CONSTRUCTION AND SEQUENCES REFER TOPIC-TEC-GCM-WVO-J00-18011-B & PIC-TEC-GCM-WVO-J00-18013-B.
fl01 VOi PHllONG PHAP THI CONGVAcN:; TRINH TIJ, XEM BAo cAo PIC-TEC-OCM-WVQ..J00-18D11-B & PIC-TEC-OCM-WVQ..J00-18013-B.
PROJECT IMPLEMENTATION CONSULTANT
lVVJN THVC Hl~N DIJ AN
ALENMIEITtN BAN'IE: STATUSll1NHT~:
Technical Deeign
PRO.ECTI Dll AN : HANOI PILOTUGKT METROLINE Sadlon Nhon-Hrml RalwaySbl!lan
ru~N WONG sAT00 THI THID1£MTP HANOi Eo911 Nh&i-Ge H~ NOi
SYSTRAS.A
DESIGNED BYTll1£r~ :
A. K
FORIMTI~BAN v£ :
A1
DATEINGAY:
31/01110
TITlflrtNBANv£: NHUE RIVER CROSSING
WQ'T SONG NHUI;:
1C 2Mllltl0 u 1lld
18 ZW&"IO UPDATED
A. K
1--"'---t="'-="-+~=------------+A."'K"'----F'-"==-+""=""--i HANOI METROPOLITAN RAIL TRANSPORT PROJECT BOARD DECK - PT - READY RECKONER
BAN M.!<T cAU - PT - BANG TfNH sAN
1A 3UJ1110 Fim-.
REVISION OATE DESCRIPTION
SC/ADO! NGA.Y NQI CUNG SO'A DOI
A. K BAN DI/ANDUONG BAT DO lHIHAN(ll
DelllNEDl!Y
1111trK£
IH!llEDl!Y
1111.r
PROJECTDIRECTORIGIANElOcD./AN : ORA'MNGNO.BAN'IE SO :
Alain B'9chereau PIC-TEC-GST-WVO-J04-18400-B 2A
, ----1
y I I 51
SA6' SA5'
X=33500
10
Y=3560
X=32485
10
Y=3511
X=3050 11
Y=1640
X=29485 11
Y=1689
SA4'
X=33500
Y=3320
B X=33500 6 X=33500 4 >---------~
Y=3080 Y=2840
X=32485
Y=3271
8
X=32485
6
Y=3031
X=30500
9
Y=1880
X=29485
9
Y=1929
SA3'
X=30500
Y=2120
7
X=29485
Y=2169
7
X=32485 4 >-------~
Y=2791
X=3050~
Y=2380 v
X=29485
Y=2409
5
SA2 SA1'
X=37720
2
Y=2616
X=37421 ~
Y=2446 ""'/
=
=
g,.,.,
a:
"'
- L=~~~1±=~: : ES1 SA9' SA8' SA7'
__,•..,..__.,x... - - - - l _ _ _ _____________ _______ ____ . _ _ _ - - - - - - - - - - - - - - · -4- - - - - · -
~ ~ 495 0 I 2000 3000 3000 3000 3000
- - - · - - - - --------- - - - - · - - - r - - - - - - ---+--~--~---+- - - - ---1·--__..·-- ·-----W-- - -+--
D
0
0
END OF CABLE
QWcAP
START OF CURVE
DAU DllONG CONG
END OF CURVE
CUOI DI/ONG CONG
X=10000
10
Y=2600
X=13000
9
Y=2600
HALF TOP PLAN VIEW
NO'A MAT BANG TR~N
SCALE: 1/50
TY Li;:: 1150
X=16000
8
Y=2600
(SHOWING CANTILEVER TENDONS 1 TO 11 ONLY FOR CLARITY}
(TH~ Hll;N cAP HANG 1a~N11 CHI a~ LAM RO)
11 10 9
'It
~8LI)-
-'
'It
~a
N-
-'II II
)( N
II II
)( N
0 0 0
X=19000
Y=2600
7
0
3000
8500
0
g
- gLI)
gU)
gcc0 ~
8
- ~ ~
- - - §
-
8
l'i
•
'
z
I ~
LEGEND
GHICHO
_.... PASSIVE ANCHORAGE
NEOBID0NG
~ ACTIVE ANCHORAGE
NEOCHODQNG
~! 1 S1
0
8;:!
---'
~,!!i
10
1----+----0--------------+-------o----t CLIENT:
t----+-----1--------------+---+-----1-----t CH09AUTLI:
"
SA8'
9
0
~ Oi
--;-
II II
)( N
9
o r
;;;
g SA7'
0
~ie--;-
II II
XN
8
::0
"'g SA6'
,
7
0
8cco CC
.,..-;-
II II
XN
7
LONGITUDINAL ELEVATION
MAT CAT DOC
HRB
SCALE: 1/50
ri' LI~: 1/50
II
PROJECT IMPLEMENTATION CONSULTANT
lV VAN THIJC HIEN DIJ AN
SYSTRAS.A
PROJECT DIRECTORIGIAM!lOcDI./AN:
Alain B6chereau
3000
X=25000
5
Y=2800
X=28514
11
X=28514
9
Y=1739 Y=1979
X=2998 11 X=29986 g
Y=1657 Y=1897
X=31514
10
X=3151
8
Y=3461 Y=3221
3000
X=28000
4
Y=2600
X=28514
7
Y=2219
X=2851
5
Y=2459
3000
X=29986 7
Y=2137
X=29 5Y=2377 r - - - -
0
88
- U)
~~
3
X=31514 6 X=31514 4 >----------~
Y=2981 Y=2741
3000 4500
2
X=37252
Y=2615
1
X=36814
Y=2452
X=32986
10
X=329 B X=32986 6 X=32986 4V=3543 Y=3303 Y=3063 Y=2823 >-------------~
II II
)( N
6
6
(ljC'l
-o
(li-;-
11 II
>< N
FILE NMIEITtNBANvE:
DESIGNED BYTlll"1~ :
A. K
CHECl<EDBYsoAT:
G. Mauris
II II
XN
5
CHIEFDESIGl'ERICHOttila,I THI~ Kt :
P. Amaud
FORIMTIKl() BANv£:
A1
II II
)( N
4
0
8N
4
'It
~s
~"7
II II
)( N
STATUS lT1NH ~ :
Technical Design
DAlEINGAY:
31/01/10
ThLldlawl1111 rru11tnct i. .....-mi..t,~ i:r~ ~
ii whole or in part orUlldfor anr p.,.,._wthcU lh9pricrwrillln
permiHionofHRS.
0
~~.., '
II 11
X N
(3J §:a
Pl";"
II 11
>< N
3
3
~(!;
~"7
II II
XN
2
2
0 0
~ ~C'l C'l
1 2
NOTE:------------~
GHICHO:
- ALL DIMENSIONS ARE IN MILLIMETERS.
TAT cA cAC KICH THllO'c THEOOON MM.
PROJECTDlfAN : HANOI PILOTUGKT METRO LINE Sadlon Nhon- Hanoi RalwaySlatlon
TUrtNEllJOt.lG sAT00 THI THIElltMTP HANQI Eoftl Nh&i-Ge H~ NOi
TITLEl'ltNBAN1£: NHUE RIVER CROSSING
WQ'T SONG NHUI;:
DECK- PT- PLAN VIEW & ELEVATION - 1/7
BAN M.!<T cAU - PT - M.!<T BANG & M.!<T ElO'NG - 1J7
Mn ...... ......O..,._ oo) ............ ..... ... ..,.,,mOI........ DRAWINGNO.BANvESO:
.... ~ ... -O..,... ~f....*'*'""'"""· PIC-TEC-GST-WVO-J04-18401-B 2A
- - - - - - - - - - - - - - < 4 X=44014 6 X=44014
Y=2823 Y=3063
- - - - - - ----< 4 X=45486 6 X=45486
Y=2741 Y=2981
a X=44014
10
X=44014
Y=3303 Y=3543
8 =45486 10 ~=~Y=3221
I~.D..
U.0<(10....U>G ~ 2 X=39748 - - --< 5 X=47014 7 X=47014 9 X=47014 11 X=47014
-U !:!:b- Y=2615 Y=2377 Y=2137 Y=1897 Y=1657
~~·~ 1
X=40186
5
X=48486 X=48486 X=46486 X=48486
_i-+-------<-~'"-+-Y-·;~
4
~
52
--~+----~----~~-~-+---~~-....~:_t-+-~----~_..___i____~i/+--~~=-~-+-9----~7-y_=-~~2~19__;_.._~~=-19_'~~9~-
1
-
1
_i~=-1_7-39----~~~-m-+---~+----~------1-i-+---~~--~-+-~----~+----i-----~-+-1-+-----~--m-+-__~_..___i_____~-+------~--·~... ,
~
=
=
=
= ! • I !
fi g I
~51~---~$*~~+=1~----1---J~ ,, I I 3 " - 4 - 8 ! 8 - 9 _o ~·--t---i
~ ~ I I
,~ SA1 SA2 g SA3 SA4 SA5 SA6 SA7 SA8 SA9 S3 I !
4500 3000 3000 3000 3000 3000 3000 3000 30 00 3000 20~
D
0
0
END OF CABLE
aAUcAP
START OF CURVE
aAU fll10NG CONG
END OF CURVE
CUOI EJU'O'NG CONG
LEGEND
GH~O
PASSIVE ANCHORAGE
NEOBIEl0NG
--q ACTIVE ANCHORAGE
NEOCHi)flONG
17252
!615
!__
'
'1"-X=39579
"-/1'=2446
2 X=39280
Y=2616
2
&! ....
~~
.... '
II II
)( N
2
88cg co
1f )ll
>< >-
0
4 X=49000
Y=2800
5 X=47515 7 X=47515 g X=47515 11 X=47515
Y=2409 Y=2169 Y=1929 Y=1689
I ~ X=46500 X=46500 X=46500 X=46500
~Y=2380 7
Y=2120
9
Y=1880
11
Y=1640
~---------j 4 X=44515 r6J X=44515 r6J X=44515 r1QI X=44515
Y=2791 v Y=3031 v Y=3271 v Y=3511
4 X=43500 r6J X=43500 r6J X=43500 r1QI X=43500
~------------j Y=2840 v Y=3080 v Y=3320 v Y=3560
3
C>
C> ~
s ........ '
II 11
XN
§!!.l
~'?
II II
XN
0
4
C>
~«;
.......II 11
XN
C>
§~.... ..,,
II 11
XN
4
3250 '
6 X=55000
Y=2600
o----+------------------+----+--->-------< CLIENT:
1----+---+---------------+---+---t------l CH09AUTLI:
II
PROJECT IMPLEMENTATION CONSULTANT
lV VAN THIJC HIEN DIJ AN
SYSTRAS.A
2A 30IGl/11 2nd •ubml11lon oflllchnlcald-.,, A. K HRB
1C 25108110 U 1lld A. K
l--""'
18'--IF23/08/1='-"
0
-+"'uPDA=JED"-------------+A"'.K-'----+=~-=~--i HANOI METROPOLITAN RAIL TRANSPORT PROJECT BOARD
1A 31/01/10 Fir.t-. A. K BAN DI/ANfllJONG llATflO THI ~ NQI
REVISION DATE DESCRIP'TlON -l'fSCIASOI NGAY NQI DlolG 80'AOOI Hilt
PROJECT DIRECTORIGIAM!lOcDI./AA:
Alain B6chereau
I
X=640009
Y=2600
10 X=67000
Y=2600
11 X=70000
Y=2600
HALF TOP PLAN VIEW
NO'A M~T BANG TREN
SCALE: 1/50
Ti'LI;.: 1/50
(SHOWING CANTILEVER TENDONS 1 TO 11 ONLY FOR CLARITY)
{THi; Hil;.N cAP HANG I ei;N 11 CHI EJ!; LAM RO)
9
C>
g ......., C)
CD";"
II II
>< N
LONGITUDINAL ELEVATION
M~TCATDQC
FILE NMIEITtNBAN~:
DESIGNED BYTllli;r~ :
A. K
CHECl<ED BYsoAT :
G. Mauris
SCALE: 1/50
TYL~: 1/50
FORIMTIKf() BANv£:
A1
STATIJS lT1NH~:
Technical Design
DAlENGAY:
31/01110
ThLldlawl1111rru11tncti......-mi..t,~ i:r~~
ii whole or in part orUlldforanrp.,.,._wthcU lh9pricrwrillln
permiHionofHRS.
CHIEFDESIGl'ERI CHONHla,I THI~ Kt : Mn ..........O..,._oo) ................. ... ..,.,,mOI........
P. Amaud .... ~ ...-0..,...~f'*<i*'*'""' """·
10
C>
C> ....
gr-.
r.o";"
II II
)( N
11
C>
C> ii!
al .....cg '
II 11
XN
11
NOTE: ------------~
GHICHO:
- ALL DIMENSIONS ARE IN MILLIMETERS.
TAT cAcAC KICH THU'O'c THEOEJON MM.
PRO.ECTDlfm: HANOI PILOTUGKT METRO LINE Sadlon Nhon- Hanoi RalwaySlatlon
TimN EJIJOt.lG sAT00 THITHIEJltM TP HANOi Eoftl Nh&i-Ge H~ NOi
TITLE'ltNBAN1£: NHUE RIVER CROSSING
WQ'T SONG NHUI;:
DECK- PT- PLAN VIEW & ELEVATION - 217
BAN M.!<T cAU - PT - M.!<T BANG & M.!<T ElO'NG - 2 / 7
ORAWING NO. BAN~SO:
PIC-TEC-GST-WVO-J04-18402-B 2A
2
~a
............
00 ;:!;:::
'ii''il' 'ii''il'
x >- x >-
~
og
l ~
~ 8 i!
i 8
~ ~
i!
~~o
ie 0..., 0 ...,
..,. "' QCJ QCJ
~ c;;.... .... .... .... ....
~
' ~
;_g
~
ill L
-~' ~
ill
ll F H~' II"'"""'
I
~
=
=SA4' SA3' SA2' = SA ,
- - · · - - - · - - - · · - - - · · - - · · - - - · · -1---··- 1--1---··
D
0
0
ILEGEND
GHICHO
END OF CABLE
flAucN>
START OF CURVE
flAu Ell/ONG CONG
END OF CURVE
CUOI fll/O'NG CONG
_.... PASSIVE ANCHORAGE
NE0Blfl0NG
---$® ACTIVE ANCHORAGE
NEO CHO flQNG
300 0
SA4'
I 3000 I
if::::
co !lilNCA
o~
@]
0
8 8 i!....
"' 0 0 C')
~ ~ ~ ~
SA3'
i! ....
!:l i8.....
II II
XN
22
o----+------------------+----+--->-------< CUENT:
1----+---+---------------+---+---t------l CH09AUTLI:
2A 30IGl/11 2nd •ubml11lon oflllchnlcald-.,, A. K
3000 I
~
if::::-wco-
NCA
o~
21
-< x -< xII II II II
co~
Nto>
0 ....
co"' o-
~!!3 N-
"'22 22
22
00
co 00
['.;~
..., '
II 11
XN
80
~
i! ....
~ig
C') '
II II
CD XN
a;....
""~
21
~rt!.
22
HRB
30 )0
-< xII II
NCA
-N
NUI
~N
co
22
....
""o
~~
II II
XN
21
1C 25108110
18 23/08/10
U ~ A.K
1--=--F= '"'--+""'uPDA= JED"--------------+A"'.K"'"----+=~-=~---i HANOI METROPOLITAN RAIL TRANSPORT PROJECT BOARD
1A 31/01/10
REVISION DATE
SCIASOI NGAY
Fir.t - . A. K BAN DI/ANflOONG llATflO THIHhQI
OESCRIP'TlON
NQIOIMG SO'AOOI
-l'f!Elt
1 2 f.'lj
....
~8i~
ll..
~·a
QN
'ii''il''ii'~ z~
X>- X >- CIJU 0:: c..
~
~~ !!di?ll..1-
8
! ~
8
~
8
~
8 80 0 IQ 0 0
!:i ~ l'll :; ~I
I"' "'g
80
!:i
0
=0 =
I
-<XII II
co !:,l
co"'
~!!3
21
21
~~
~~
II 11
XN
II
· - - - · · - - - ··
r - - ::-1'.S.J_I__- -- -
4500 I 4500
HALF BOTTOM PLAN VIEW
MOT NO'A MAT BANG fJAY
80
~
SCALE: 1/50
Ti' LI;: 1/50
~I~~en lo::c..
~~~~
8IQ
l'll
+1
80
:;
LONGITUDINAL ELEVATION
MAT CAT DOC
SCALE: 1/50
T'i'LI;:: 1/50
PROJECT IMPLEMENTATION CONSULTANT
lV VAN THIJC HIENDIJ AN
SYSTRAS.A
FILE NMIEITtNBANvE:
DESIGNED BYTlll"1~ :
A. K
CHECl<EDBYsoAT:
G. Mauris
80
~
PROJECT DIRECTORIGIAM!lOcDI./AA: CHIEFDESIGl'ERICHOttila,I THI~ Kt :
Alain B6chereau P. Amaud
1 2 2
..., ....
ig
...,
!ll Si .... .... !ll Si...,CD ~~ lt'>O CO CD
lii
x >-
l~
X >-
l 'il'
X>-
lii
x >-
8 i!
~
8
~
i!
~
8
~ ~ [ 8 ~
~ i 80..., 0 ..., 0 0 0
~ ~ ~ ~ ~ ~ :li" !il
' ~ ~
=
=
""
~~rn Jro
-
g/ ,.....1' ~
~I I g
i a:
SA1 SA2 SA3 SA4
I
- ~
-<X
~ !
-< x
~!
N CA OCA
.... ....
~~N-
"'22 21
FORIMTIKl() BANv£:
A1
30 JO
-< x
~!_....
_. UI
~N
"'22
21
...,
i!!o
..,. "'..,. '?
II II
XN
I
~£
~~
21
-< x
~JI.
om
ON
N ljl
22
22
STATUS lT1NH ~ :
Technical Design
DAlENGAY:
31/01110
ThLl dlawl1111 rru11tnct i. .....-mi..t,~ i:r~ ~
ii whole or in part orUlldforanrp.,.,._wthcU lh9pricrwrillln
permiHionofHRS.
Mn ..... .....O..,._ oo) .......... ..... ... ..,.,,mOI........
.... ~ ...-o..,..,ID"llt '*"* ...""'"""·
3000
22
....
11; ...
i-.. IO
..,. <?
II II
XN
~£
~~
22
0
~ ....
~~
II II
X N
22
I 3000 I 3000
NOTE:------------~
GHICHO:
- ALL DIMENSIONS ARE IN MILLIMETERS.
TAT cA cAC KICH THU'Oc THEO flO'N V MM.
PRO.ECTDlfm: HANOI PILOTUGKT METRO LINE Sadlon Nhon- Hanoi RalwaySlatlon
TimNEllJOt.lG s.l.T00 THI THIElltMTP HANQI Eloftl Nh&i· Ge H~ NOi
TITLEl'ltNBANvE: NHUE RIVER CROSSING
WQ'T SONG NHUI;:
DECK- PT- PLAN VIEW & ELEVATION - 3 / 7
BAN M.!<T cAU - PT - M.!<T BANG & M.!<T ElO'NG - 31 7
DRAWINGNO.BAN~SO:
PIC-TEC-GST-WVO-J04-18403-B 2A
2 3 1
-~
-
---~s
4500 I
51 53 52
a: 53 52
~~ !Em 15(1)
cYi ~ ~ [gmo Q'.11. Cf)~ tot)~_(.)!:!:!::>
II 11 II II
~~ D.f: XN XN
-
18 ~ 80 LO
l$! ~ l$!
=0
0
8
~
4500
80
~
51
0
:5!ij!
-......... 'II 11
XN
~
I
I
51
8LOco O>
~tt?
II II
XN
~ ~
-~I
53
-< )(
II Jl.
~ 8l
8l8
~ 8 0
I~~ .....
ill
SA1 SA2
3000 I 3000 I
52 52 53 53
Oco oO> o..._
:ii!"""o~
Oo
g~:8- co~
~";- .....";- !;;:~ ..... ";-
II 11 II 11 II 11 II II
XN )( N XN )( N
i ~
~ ~ :ii!
~
8 ~ ~ :ii!
~ s ~
0
~ ~ ~..... ~
~
"" -·I "' crt .____________
~_ ( '----------6 I~ [51
N
~
~
.._ ;;:;
52
53 -" ,_,
1s1 ~
0
- =
==- I
-
8 co 8 _8
I
o""" o """ gi ..... ;g
~..,_M ,._
8l ~ ~ ~C!i ~l'l"';" P') ,M
II 11 II 11 II
~
M";-
-'XNX NX II II II
~
52 a )( N X
53
5352
D
END OF CABLE
E>Au cAP
0
START OF CURVE
E>Au E>llONG CONG
0
END OF CURVE
CUOI ElU'¢'NG CONG
-(,0:/
O:'/
8..,.. 0
SoN:8~. -t!:
i!I:~ """'II II
)( N
51 51
..j-
SA1~
~
r-
a:
8 CD Oco
NCO o~
~~ ~";-
i!I:~ II 11
XN
52 52
LEGEND
GH~O
PASSIVE ANCHORAGE
NEO Bl E>()NG
--fl ACTIVE ANCHORAGE
NEOCHOOQNG
o----+------------------+----+--->------< CLIENT:
1----+---+---------------+---+---t------l CH09AUTLI:
2A 30IGl/11 2nd •ubml11lon oflllchnlcald-.,, A. K
]---,__
~ )
~
"',,_
l$! O> o..._
coN ~~
~~ ~"7
i!I:~ II II
)( N
53 53
HRB
~
0
0
0
;:"()
SA3
3000
~
80
;:"()
SA3
0
§
LO
~
0
~
co
M
f(j f(j
0 0
~
0
0 co 0
0 M
:;i!u; u; CD
LI--~] fL.L__[-~] ([J t[ I ffi
I
~
:ii!M
f(j
~
SA5
SM SAS SA7
3000 I 3000 I 3000 I 3000
~
SA4
32500
HALF BOTTOM PLAN VIEW
MOT NO'A M~T BANG DAY
SCALE: 1/50
ti' Le: 1150
(SHOWING CONTINUITY TENDONS AT MID SPAN:- 51 TO 530NLY FOR CLARITY)
(CHI RA cAP O'NG SuAT TRU'O'c ui;N Tl,IC T~I NHIP GIO'A: -61 TI)I 53 CHIei; LAM RO)
8
~ ~
8
~ ~ ~
8
~
8 :ii!
~
80 0 0 0 M 0
1; is ill lll ~ u; i2
~
SA5 SAS SA7
- ~
l ~
'-- - -, ~
~
0
co
!ii
Jrn
I
~
:ii!M
~
I
------, ) --------, ,J --------. ~ ~ ,J I r
II
LONGITUDINAL ELEVATION
M~TCATDOC
PROJECT IMPLEMENTATION CONSULTANT
lV VAN THIJC Hl~N DIJ AN
SYSTRAS.A
SCALE: 1150
TY Le: 1150
FILE NMIEITtNBANvE:
DESIGNED BYTlll"1~ :
A. K
FORIMTIKf() BANv£:
A1
STATUS lT1NH~:
Technical Design
DAlENGAY:
31/01110
1C 25108110 U 1lld A. K
l--""'
18'--IF23/08/1=""0
-+"'uPDA=JED"--------------+A"'.K"'-----+=~-=~--i HANOIMETROPOLITAN RAILTRANSPORT PROJECT BOARD
CHECl<ED BYsoAT :
G. Mauris
ThLl dlawl1111rru11tncti......-mi..t,~i:r~~
ii whole or in part orUlldfor anr p.,.,._wthcU lh9pricrwrillln
permiHionofHRS.
1A 31/01/10 Fir.t-. A. K BAN DI/ANDIKING llATflO THI ~ NQI
REVISION DATE OESCRIP'TlON -l'fSCIASOI NGAY NQI OlolG 80'AOOI Hilt
Mn ...........O..,._oo) ................ ... ..,.,,mOI........
....~ ...-o..,..,ID"llf'*<i*'*'""'"""·
PROJECT DIRECTORIGIAM!lOcIll./AN:
Alain B6chereau
CHIEFDESIGNERICHONHla,I THI~ Kt :
P. Amaud
~~
i
0
~
0
~ ~
0
0 0 0
~ :ii! 0
CD CD ;:::
--1
__ J
J
I
I
I
I
I
SA8 SA9 S3
l_J3000 I 3000 I 20100 I
~
8
~
8
i ~
80 0 0
l8 :8 ;:::
-- --,
==d
SA8 SA9 S3
-
I
I
I
I
I- ' -- --i
NOTE:- - - - - - - - - - - --
GHI ~~LL DIMENSIONS ARE IN MILLIMETERS.
TAT cA cAC KICH THU'(Jc THEOE>ON V MM.
PRO.ECTDlfm: HANOI PILOTUGKT METRO LINE Sadlon Nhon- Hanoi RalwaySlatlon
TimN EllJOt.lG sAT00 THI THIElltMTPHANOi Eoftl Nh&i-Ge H~ NOi
TITLEl'ltNBAN1£: NHUE RIVER CROSSING
WQ'T SONG NHUI;:
DECK- PT- PLAN VIEW & ELEVATION - 4 / 7
BAN M.!<T cAU - PT - M.!<T BANG & M.!<T ElO'NG - 417
DRAWINGNO.BANvESO:
PIC-TEC-GST-WVO-J04-18404-B 2A
~
:i:
'~
!';
nt If~
7
ii!~
! ~ i
!i! t~ I ~
~ n0..
D
END OF CABLE
E>AUcAP
0 START OF CURVE
f>AU E>OONG CONG
0
END OF CURVE
CUOI E>l10NG CONG
LEGEND
GH.:.;(J
PASSIVE ANCHORAGE
NEOBIE>QNG
---'*'® ACTIVE ANCHORAGE
NEO CHO E>ONG
f?l......
a.
< .
u..o·:J O&l(.) z..-
(/)(.) a:ll.
-:::> w=>
~~ a:~0
0
~
PS1
0
0
0
......
....
X=64380 31
~=lir~~::~::ORCLAR-ITY-cSA2--=i--SA3----r=SA4--~r-SA5-- ~·--SA6-___ I _SA_7_. Y=
1786
1m~=:~~~At----t___:SA9~-;=~~----t---=-~
cAP so 31 CHI a£ LAM RO - · ·---· · - - - - - - ---·J'-· ·--- ·--- ---· ·-------· ,~r--~x~~---· JY=1953
X=58380
· - - - - - - - ·
-t--· .-----i
SA7 SA8 SA9 I
I~~~~00 -cSA2-]~-I~~I~-A~~~~~~-~r~r--T~CHI RA MAT BANG JJ.;ii;
CABLE NO. 33 ONLY FOR CLARITY
cAPS033CHTa£LAMR0 _ ·- - - - - -·- - ·-- J'- ___ ______
I
~
_j__JN
g
----'1- ·· - - - - - - - ·
X=55380 34
Y=1724
PLAN VIEW SHOWING -·c;·--·=r·----i=--.r:-:-CHT RA MAT BANG
CABLE 1'.10. 34 ONLY FOR CLARITY SA2 SA3 SA4
cAPS034CHTa£LAMR0 - - - - - - - - - - -- J'-
PLAN VIEW SHOWING
CHI RA MAT BANG
CABLE 1'.10. 37 ONLY FOR CLARITY
cAP SO 37 CHI a£ LAM RO L-"'===-:-::=~~=::'.l
N
....
0
0
~
....
0
0
0
~
0
0
~
0
a
~
SA6
0
0
~
· - - - - - - - ·
SA7
- - - - - - - ·
SA7
· - - - ·
SA8
SA8
SA8
0
0
!8
-t-·
SA9
----'1-
~-
----'1- ·
----'1- ·
0
0
m
S3
53
0
0
a
j!:
.-----i
I
I
I
___J
I
I
I
__J
. -----,
I
I
___J
--- 1
~-------~==~========gr~~~~~;;~~~~~~-~-~-~-~-~-~~~~~~~~~~~~~-~-~-~-~-~-~~~~~~~~~~~~~~~~~~~-~-~-~-~-~-~-~~~~~~~~~~~~~~---1
SA1 SA3 SA4 SA5 SA6 SA7 SA8 SA9 S3
I
I
I
I
I
-----·--~------------~-----------~-------~-------~-------~-------~-------~-------~-------~-------~-------~-------~--~__J
4500 4500 30 00
1----+----0--------------+-------o----t CLIENT:
t----+-----1--------------+---+----1----t CH09AUTLI:
2A 30I04/11 2nd aubmi11ion ofledinicaldllil9iun A. K
1D 01110/10 Updatlld A. K
3000
HRB
3000 3000 3000
32500
HALF BOTTOM PLAN VIEW
MOT NO'A M~T BANG fJAY
SCALE: 1/50
TI"t..e: 1/50
(SHOWING CONTINUITY TENDONS AT MID SPAN:-31 TO 370NLY FOR CLARITY)
(CHI RA cAP l'.rNGSuAT TROOCLl~N Tl,JC T-!11 NHIP GIO'A: -31 TOI 37 CHIf>~ LAM RO)
II
PROJECT IMPLEMENTATION CONSULTANT
lVVAN THIJC Hl~N DIJAN
SYSTRAS.A
FILE NMIEITtNBANvE:
DESIGNED BYTllli;r~ :
A. K
1C 25108110
18 23/08/10
CHECl<EDBYsoAT:
G. Mauris
U 1lld A.K
1--=--t== --1-'u"'PDA= JED------------+A"".""K---F-'=--1-'== --t HANOI METROPOLITAN RAIL TRANSPORT PROJECT BOARD
30 00
1A 31/01/10
REVISION DATE
Fir.t - - A. K BAN DI/ANflOONG llATflO THIHhQI
DESCRIPTION
NQIDlolG 80'A001 -rr!Elt
PROJECT DIRECTORIGIAM!lOcIll./AA: CHIEFDESIGNERI CHONHla,I THI~ Kt :
SCIASOI NGAY Alain B6chereau P. Amaud
3000
FORIMTIKl() BANv£:
A1
STATUSlT1NH ~ :
Technical Design
DAlENGAY:
31/01/10
ThLl dlawl1111 rru11tnct i. .....-mi..t,~ i:r~ ~
ii whole or in part orUlldforanrp.,.,._wthcU lh9pricrwrillln
permiHionofHRS.
Mn ...... .....O..,._ oo) ............ ..... ... ..,.,,mOI........
....~ ...-o..,..,ID'llt'*"*'*'""'"""·
300 0 3000 20 0
NOTE: ------------~
GHICHU:
-ALL DIMENSIONS ARE IN MILLIMETERS.
TATcA c:Ac KICH THlJOCTHEOOON MM.
PRO.ECTDlfm: HANOI PILOTUGKT METRO LINE Sadlon Nhon- Hanoi RalwaySlatlon
TimNEllJOt.lG sAT00 THI THIElltMTP HANOi Eoftl Nh&i-Ge H~ NOi
TITLEl'ltNBAN1£: NHUE RIVER CROSSING
WQ'T SONG NHUI;:
DECK- PT- PLAN VIEW & ELEVATION - 617
BAN M.!<T cAU - PT - M.!<T BANG & M.!<T ElO'NG - 6I 7
ORAWINGNO.BANvESO:
PIC-TEC-GST-WVO-J04-18406-B 2A
~·L~~~~~
0 0
cc
~;::::
(') (')
+1
D
END OF CABLE
f>Au cAP
0
START OF CURVE
f>AU f>llONG CONG
0
END OF CURVE
CUOI ELIO'NG CONG
0
0
0
::;:
LEGEND
GHICHO
0
0
~
SA1
----- PASSIVE ANCHORAGE
NEO BlflQNG
~ ACTIVE ANCHORAGE
NEO CHO flQNG
1----+------------------+----+--->------< CLIENT:
1----+---+---------------+---+---t------l CH09AUTLI:
2A 30IGl/11 2nd •ubml11lon oflllchnlcald-.,, A. K
37
.,.... ....
~ ....cc.,....
.... <11
II II
>< N
SA3
Oo ic;;cc"'
~cc ~ ........ ";" v";"
II II II II
>< N cc.,.... )( N (').,....
37 :Ii~ 36 cc li!
......... a.,....... I IO 1
II 11
XN
II 11
)( N
37 36
HRB
1C 25108110
18 23/08/10
U ~ A.K
1--=--F= '"'--+""'uPDA=JED"-- - - - - - - - - - - - +A"'.K"'"---+=~-=~--i HANOI METROPOLITAN RAIL TRANSPORT PROJECT BOARD
1A 31/01/10
REVISION DATE
SCIASOI NGAY
Fi..t - . A. K BAN DI/ANflOONG llATflO THIHhQI
OESCRIP'TlON
NQIDlolG 80'A001
-rr!Elt
0
0
0
iO
LONGITUDINAL ELEVATION SHOWING
CHI RA ~Tf>lJNG
CABLE NO. 32 ONLY FOR CLARITY
cAPSO 32 CHI ei;_ LAM RO
LONGITUDINAL ELEVATION SHOWING
CHI RA ~T f>lJNG
CABLE NO. 33 ONLY FOR CLARITY
cAPSO 33 CHI ei;_ LAM RO
36 35 34
.......... ........ Nl"il~~ ~(')
~~
cc cc
iii~ ro ~
II II
>< N
II II
>< N
II II
>< N
0 0 0 0
cc 0 cc 0
!:.! ~ l"il ~
IO IO IO
SA4
oa> o<D
"°a> 00 (J)
~IO l"il•IO";" IO";"
II II II II
)( N
... Cl)
>< N 0 IO
35 cc~
34 12;::::~ ......IO 1 IO";"
II 11
)( N
II 11
)( N
35 34
LONGITUDINAL ELEVATION
MAT CAT DOC
SCALE: 1150
TI' LI;: 1/50
II
PROJECT IMPLEMENTATION CONSULTANT
TU VAN THIJC HIENDIJ AN
SYSTRAS.A
FILE NMIEITtNBANvE:
DESIGNED BYTlll"1~ :
A. K
CHECl<EDBYsoAT:
G. Mauris
0
0
alIO
PROJECT DIRECTORIGIAM!lOcIll./AA: CHIEFDESIGl'ERICHOttila,I THI~ Kt :
Alain B6chereau P. Amaud
0 0
0
0
cc(')
CD CD
FORIMTIKf() BANv£:
A1
0 0
0 cc
~ ~
o .,.
cc ~
~ ";"
II 11
)( N
Ed
STATIJS lT1NH ~ :
Technical Design
DAlENGAY:
31/01110
ThLl dlawl1111 rru11tnct i. .....-mi..t,~ i:r~ ~
ii whole or inpart orUlldfor anr p.,.,._wthcU lh9prtrwrillln
permiHionofHRS.
Mn .. .... .....O..,._ oo) ........... ..... ... ..,.,,mOI........
....~ ...-o..,..,ID"llt'*"*'*'""'"""·
31
cc ....
;!!:! ....
CC IO
CD";"
II II
>< N
0
0
i5 ....cc
~o
l"il~
cc ";"
II 11
)( N
31
SA9 53
t'0 0
0 0
al 0
cc ..... ;::::
== =d
I
SA9 S3
NOTE:- - - - - - - - - - - --
GHI ~°ALL DIMENSIONS ARE IN MILLIMETERS.
TAT cA cAC K!CH THLIO'c THEO EON MM.
PRO.ECTDlfm: HANOI PILOTUGKT METRO LINE Sadlon Nhon- Hanoi RalwaySlatlon
TimNEllJOt.lG sAT00 THI THIElltMTP HANOi Eoftl Nh&i· Ge H~ NOi
TITLEITtNBANvE: NHUE RIVER CROSSING
WQ'T SONG NHUI;:
DECK- PT- PLAN VIEW & ELEVATION - 717
BAN M.!<T cAU - PT - M.!<T BANG & M.!<T FJO'NG - 7 J7
ORAWINGNO.BAN~SO :
PIC-TEC-GST-WVO-J04-18407-B 2A
CABLE NO.
1A 2A 3A 4A 5A 6A 7A BA 9A 10A 11A 41A 42A 43A 44A 1B 2B 3B 4B SB 6B 7B BB 9B 10B 11BcAPsO
f)'8~
1
v1 2x12T15 2x12T15 2x12T15 2x12T15 2x12T15 2x12T15 2x12T15 2x12T15 2x12T15 2x12T15 2x12T15 2x12T15 2x12T15 2x12T15 2x12T15 2x12T15 2x12T15 2x12T15 2x12T15 2x12T15 2x12T15 2x12T15 2x12T15 2x12T15 2x12T15 2x12T15
LENGTH fm{CH1i;u DAI m 9.056 9.002 14.991 21.002 27.002 33.011 39.001 45.028 51.021 57.031 63.031 14.318 24.254 27.329 30.210 9.056 9.002 14.991 21.002 27.002 33.011 39.001 45.028 51.021 57.031 63.031
" ~vc (Ion) 238.9 238.9 238.9 238.9 238.9 238.9 238.9 238.9 238.9 238.9 238.9 238.9 238.9 238.9 238.9 238.9 238.9 238.9 238.9 238.9 238.9 238.9 238.9 238.9 238.9 238.9L KlrH n
co
m~m) 61 62 101 137 175 212 248 283 319 353 387 95 148 174 183 61 62 101 137 175 212 248 283 319 353 387
PHAN~ODAI
NEC
12T15 12T15 12T15 12T15 12T15 12T15 12T15 12T15 12T15 12T15 12T15 12T15 12T15 12T15 12T15 12T15 12T15 12T15 12T15 12T15 12T15 12T15 12T15 12T15 12T15 12T15
w
B: 1 2 3 4 5
• 7
• • 10 11 - - - - - - - - - - - - - - -
"zw - - - - - - - - - - - 1 2 3 4 - - - - - - - - - - -
~ RWl~oc...1:13 - - - - - - - - - - - - - - - 1 2 3 4 5
• 7
• • 10 11
"'" 81.~r~a~4
~
- - - - - - - - - - - - - - - - - - - - - - - - - -
.,,, GW"Eo~s - - - - - - - - - - - - - - - - - - - - - - - - - -.,~
STAGESw~
1"2 GIAIEOANB - - - - - - - - - - - - - - - - - - - - - - - - - -
~ GiAi'"'Eo/Ji1 - - - - - - - - - - - - - - - - - - - - - - - - - -
CABLE NO.
41B 42B 43B 44B 31 32 33 34 35 38 37 21A 22A 21B 22B 51 52 53cAPSO
fs'8~
1
v1 2x12T15 2x12T15 2x12T15 2x12T15 2x12T15 2x12T15 2x12T15 2x12T15 2x12T15 2x12T15 2x12T15 2x12T15 2x12T15 2x12T15 2x12T15 2x19T15 2x19T15 2x19T15
LENGTH m
14.318 24.254 27.329 30.210 13.294 19.315 25.343 31.313 37.320 43.360 49.319 14.298 20.326 14.298 20.326 68.142 68.081 68.086CHIEU DAI m
Lu-C l.1CH
"
(I On)
238.9 238.9 238.9 238.9 238.9 238.9 238.9 238.9 238.9 238.9 238.9 238.9 238.9 238.9 238.9 378.3 378.3 378.3
~~N~~ ~j'(m~m) 95 148 174 183 88 120 147 195 222 247 293 95 126 95 126 383 405 403
ANCHORAGE 12T15 12T15 12T15 12T15 12T15 12T15 12T15 12T15 12T15 12T15 12T15 12T15 12T15 12T15 12T15 19T15 19T15 19T15NEC
w STAGE 1
- - - - - - - - - - - - - - - - - -
"
GIAIEOAN 1
z STAGE2 - - - - - - - - - - - - - - - - - -w GIAIEOAN2
~ 8W~~o~3
.,~ STAGE4 1 2 3 4 - - - - - - - - - - - - - -t!)Z GIAIEOAN4
~ STAGE5
- - - - 1 3 - - - 4 2 - - - - - - -.,,, GIAIEOAN5
.,~
STAGESw~ GIAIEOANB - - - - - - - - - - - 1 3 2 4 - - -
«z
~ 8W~~dNG1 - - - - - - 1 2
' - - - - - - 4 5
•
DESfRIPTION OF STRESSING SEQUENCE :-
Prestresslng strands characteristics
cac 66.c tlnh tao Clip clng trWc
MO t TRINH TU' c:ANG GAP:-
Nomlnal diameter of strand 15.24 mm
STAGE 1:- SJ.ll.ESW~ CANTIL[,VER TENooim_ ',jOM 1A ;i;g.11A CURI~ CASTING OF CANTILEVER AT PIER NO. P152. e·......., kfnh danh "!nh a.la tao c6p
GIAIEOAN1:- G GTL11Afl N11ATRONGQ NHflUC GTAI TRU .P152. Nominal cross-sectional area ot strana 1<tU mmz
STAGE 2:- SlRESSING OF CONTINUITY TENDONS OF LATERAL SPAN BETWEEN PIER NO P151 & P152 DURING CONNECTION WITH LATERAL SPAN. Dien tfch mat ck ngang danh (fjnh cUa tao Clip
GIAI EOAN 2:- c:ANG GAP LIEN TUCCOA NHIP BEN GiO'A TRU SO P151 & P152 TRONG QUA TRINH Ki:t" NOi VOi NHIP BEN. ..,,timate tens11e strengrn or strana, rpu 1860 N/mm2
STAGE 3:- SJ.ll.ESW~ ~TIL[,VER TENooim_ ',jOM 1B ;i;g.11B CURI~ CASTING OF CANTILEVER AT PIER NO. P153.
GIAIEOAN3:- G GTD'1Bfl N11BTRONGQ NHflUC GTAI TRU .P153.
Clll)ng c!O k8o toi hlim cUa tao c6p, fpu
STAGE 4:- SJ.ll.ES~NG OF COl'(TINUITY TENDONS~ LATERAL SPAN BETWJf,N ~ER610J:153 & r,154 DURING CONNECTION WITH LATERAL SPAN.
Minimum breaking load of sband 260.4 kN
GIAIEOAN4:- G PLIENTl,lCCUANHIPBENGIO'ATRU P153&P154TRONGQUA NH TN IV INHIPB N. Tdl lrQng ph6hu~161 thliu cila tao Clip
STAGE 5:- SJ.ll.ESSING FIRST S~G~ OF COl)IIINUITY TE= OF~IN Sf~,jBEFOFJ' REMOVAL OF FROM "TRAVELLER AT MID SPAN) 11e1a stregm 1r strana, 'flY 1670 N/mm2
GIAI EOAN 5:- G GIAI E~N MOT P LI NTUC C NHIP CHINH KHI 0 GI E If>ONG NHIP GiO'A) Gi6'i h11m cluiy, nAu tao Clip, fpy
STAGE 6:- SJll.ES~NGt,DDITION~L TENDJ6NS AT THE TOP OF PIER NO. P152 & P153 ....aS11c m....u1us l<>fUUU ,,,,mm;£
GIAIEOANB:- G PB SUNGT61ENHTRU P152&P153 MO c!un clBn hbi
STAGE 7:- SlRESSING SECOND STAGE OF CONTINUITY TENDONS~ MAIN SPAN BEFORE INSTALLING SIDL Relaxation after 1000 hrs at 2o•c & 70% GUTS 2.50%
GIAI EOAN 7:- c:ANG GIAI EOAN HAI cAP LIEN TUC COA NHIP CHINH TRUO'C KHI ~T SIDL ChQng (Ing su6tsau 100gl&1'120oC & 70%%% GUTS
Nomina1 mass or sbana
TIQflg luvng danh (fjnh cila tao clllp
1.102 kg/Im
.JaCKlnQ TDrc& 75,., ,..,u
Li,rc kfch
-NOTEfi:-
GHICH :
1. FOR GENERAL NOTES REFER SEPARATE DRAWING.
1. V¢1 cAc GHI CHO CHUNGXEM BAN~ RIENG Bll;:T.
2. FOR GENERAL PIT SCHEME REFER TO PIC-TEC-GST-WVO-J00-18400-B.
2. vE BO TRI PIT CHUNG XEM PIC-TEC-GST-WVO-J00-16400-8.
3. FOR TENDON ELEVATION AND PLAN VIEW LAYOUT REFER TO PIC-TEC-GST-WVQ-J00-18401.S TO PIC-TEC-GST-WVQ-J00-18407.S.
3. VE M~T EO'NG VA BO TRI W,T BANG cAP XEM PIC-TEC-GST-WVO-J00-16401-B EEN PIC-TEC-GST-WVO-J00-16407-B.
4. FOR TENDON SETTING OUT REFER TO PRESTRESSING CROSS-SECTION DRAWINGS PIC-TEC-GST-WVQ-J00-184010-B TO PIC-TEC-GST-WVQ-J00-18419.S.
4. VE nili:t" V.P cAP XEM cAc BAN VE Wi,T cAT NGANG O'NG SUA.T TRUO'C PIC-TEC-GST-WVO-J00-164010-B TO PIC-TEC-GST-WVO-J00-16419-B.
5. FOR METHOD OF CONSTRUCTION AND SEQUENCES REFER TO PIC-TEC-OCM-WVO-J00-16011-B TO PIC-TEC-GCM-WVQ-J00-18013.S.
~
5. VE BiSN PHAP VA TRINH TU' nil CONG XEM PIC-TEC-GCM-WVO-J00-18011-B DEN PIC-TEC-GCM-WVO-J00-18013-B.
i CLIENT:
II
PROJECT IMPLEMENTATION CONSULTANT FIL£NMIEITtN BANv£ : SCAl.Elli'L.f:: STATUSTlNH~: PRO.ECT01,rN.I: HANOI PILOT LIGHT METRO LINE Sectkln NOOn - Hanoi Ralway S1atlan
~
' CH0f>AUTl1: lVVANTHIJCHll;:N DIJAN PIC.'fEC.OST-WVQ.JIM..11MD118_2ADINl3 - Technical Design
TIM:N El.IO'NG sA.TE0 THI THIEl~M TP HA NOi E>o1ir1 Nh&i- Ge Hill NQI
•~ I
SYS"TRAS.A
DESIGNED BYITllltrKE: : FORtMTIKt() BANv£: DAlEINGAY: TITLfIrtN BAN v£ :
~ HRB NHUE RIVER CROSSING
'§ A.K A1 31/01110 lll1QT SONG NHUo7
~§ "' 30I04/11 2nd submission of lechnlcaldes91 A.K 3.Maurls
·"""""'
! ~ 1i
1C 25I08/10 UM•'"' A.K k:3.Maur1s
·"""""' CHECKED BYsoAT: Thladr-ingrnJlllnolba-IDar-.d,coplaclor-rapmcilcad DECK - PT - SUMMARY AND SEQUENCESHANOI METROPOLITAN RAIL TRANSPORT PROJECT BOARD
'¥
18 ,...,,, UPDATE> A.K ~.MauriB
"·"""""' G. Mauris i1 whole ar in part or used for any Prl4XM8 wihoU; lh8 priorwrillfll"I
BAN M,iT cAU- PT-TOMTATVAcAC TR]NHTI/
~ 1A 31/01/10 Fi18118a111 A.K 3.MauriB
·"""""' BAN DI/AN DUONG sAT!lO1111 HA NQI permissiondHRB.
~.
-· ·-· PROJECTDIRECTORIGIAMElOC DI/Nol : CHEFDESIGtERICHO ttill;M Tllltr ~ : Mn vii n6y khllng <t.rvc ~Ill- lt,lng - rn;il h'1h h)c, m(ll phln tmv DRAWING 00.IBANv£SO :
I2A~ ~;;
REVISION
"'"' "'""'"""'" -·- lallln bl), mi1I khllng<tJvc.,a&ngtbingWntimia:. HRB.
PIC-TEC-GST-WVO-J04-18408-BscrAa01 NGAY NOi OlMG scrA001 ..... ""' ClliNll)lllEllE Alain B8chereau P.Amaud
SECTION AT CHAINAGE
MAT CAT T1!JoYTRlNH
NUM Y
42 2122
43 2303
44 2001
SECTION AT CHAINAGE
MAT CAT TAI LYTRlNH" X=2500
NUM Y
42 1951
43 2199 -1125
44 1804 -1870
SECTION AT CHAINAGE
MAT CAT T11!x,Y TRlNH
NUM Y
42 1825 -1670
43 2121 -1508
44 1659 -1670
1----0----+-------------+----+-----o---< CUENT:
~' ~~M
~ ~~ t - - - + - - - - + - - - - - - - - - - - - - - - - - - - - - - t - - - l
7 1~ t--~-r30/00_1_1 -+-2~-.-.b-mm-100-~lllch-nl-~-1d-.,,-------+-A.-K---;t----+-----1 HRB
SECTION AT CHAINAGE
MAT CAT T1!1~Y TRlNH
,.-----
NUM y I
42 2078
I

43 '22.77 I
44 1950 I
I
c42
I
I
.,
cf4
SECTION AT CHAINAGE
MAT CAT TAI LY TRlNH" X=3000
NUM Y Z
42 1909 -1884
43 2173 -1254
44 1758 -1870
SECTION AT CHAINAGE
MAT CAT T111oY TRlNH
NUM Y
42 1781 -1670
43 2097 -1598
44 1609 -1670
II
PROJECT IMPLEMENTATION OONSULTANT
lV VAN THIJC Hl~N DIJ AN
SYSTRAS.A
~ ~ ~ 1C 251D8110 U 1lld A.K
Ii; ., 1il 1--
1
"""
8
--r-2
3/08/1="'--
0
-+""'UPDA=JED'"------------+-'A."""K---;i==="'--+"'="--1 HANOIMETROPOLITAN RAILTRANSPORT PROJECT BOARD
~ It 1A 31/01/10 Fir.t -- A. K BAN DI/ANDUONG llATflO Tlll~NQI
I- c ~ REVISION DATE OESCRIPTlON - l ' f Q1El:RJJl'f
~ ~ i SCIASOI NGAY NQIOlolG 80'AOOI Hilt IQIJ
PROJECT OIRECTORIGIAM!lOcIll./AA:
Alain B6chereau
Y=QZ=O
Y=QZ=O
SECTION AT CHAINAGE
MAT CAT T1!JooYTRlNH
NUM Y z
42 1993
43 '22.25
44 1853
SECTION AT CHAINAGE
MAT CAT TAI LY TRlNH" X"3500
NUM Y
42 1887 -1670
43 2147 -1383
44 1707 -1870
SECTION AT CHAINAGE
MAT CAT T1~~r TRlNH
NUM Y
42 1739 -1670
43 2088 -1652
44 1561 -1670
Y=OZ=O
Y=OZ=O
Y=OZ=O
NOTE~:~--------------------------------------.
GHICHU
- ALLDIMENSIONS ARE IN MILLIMETERS.
TATcA cAC i<TCH THIJO'C THEO OON 111 MM.
- TH~.T,ENDON LAYOlJT IS SYMMETRICAL TO THE SEGMENT CENTER LINE (Z=O)
M~T .,,..,,G cAP lA001XIJNG VOi ELIONGTM.I PHAN~ (Z=O)
- FOR GENERAL PIT SCHEME REFER TO DWG.No.PIC-TEC-OST-WVO.J00.18400-B.
-VOi BO TRIPfT TONG THI;, XEM B.l.N /!;SO PIC.TEC-GST-Wf0.J00.1840~B.
- FOR TE~DON ELEVATION AND PLAN VIEW LAYOUT REFER TO DWG. No. PIC-TEC-GST-WVo-J00-18401.S TO PIC-TEC-GST-WVo-J00-18407.S.
- VI: ~T EIJNGVA 00 TRI ~T BANG CAP XEM BAN vE:SO PIC.TEC.GST-WVO-J00.18401-B E~N PIC.TEC-GST-WVO-J00.18407-8.
- FOR PRESTRESSING DETAIL AND SEQUENCES REFER TO DWG. No. PIC-TEC-GST-WVo-J00-18406-B.
vr: CHI Ti8° VA TRINH TL! l/NG SuAT TRLIOC XEM BAN v~soPIC.TEC-GST·WfO.J00.18408-B.
FILE NMIEITtNBANvE:
DESIGNED BYTllli;r~ : FORIMTIKf() BANv£:
A. K A1
STATUS lT1NH ~ :
Technical Design
DAlENGAY:
31/01110
CHECl<EDBYsoAT: n.~ •-.-.i """"" "" _""_,,_, .,._ __,
G. Mauris n wholo or in portm".-forln!'P'-wlhoo.l lhoprior-
1-----,,...--..,......,---1 permiHionofHRB.
CHIEFDESIGl'ERCHOttila,I THI~Kt : Mn ....,. "'°""°"""- w...,.-.i....,"""""""""'rnOI,.....,
P. Arnaud .... ~ ma -o..,..,ID"llt'*<i *'*' ""' """·
PRO.eCTDlfm: HANOI PILOTUGKT METRO LINE Sadlon Nhon-Hanol RalwaySlatlon
TimNEllJOt.lG sAT00 THI THIElltMTP HANOi Eoftl Nh&i-Ge H~ NOi
TITLEl!tNBAN1£: NHUE RIVER CROSSING
WQ'T SONG NHUI;:
DECK - PT - CROSS SECTIONS - 1 / 10
BAN M.!<T cAU - PT - M.!<T cAT - 1 / 10
DRAWINGNO. BANvESO :
PIC-TEC-GST-WVO-J04-18410-B 2A
~ '
SECTION AT CHAINAGE
MAT CAT T1!e!ooY TRlNH
NUM Y z
42
43
44
SECTION AT CHAINAGE
MAT CAT T11~1 TRlNH
NUM Y
11 2560 -193
41 1819 -1388
42 1657 -1675
43 2087 -1675
44 1487 -1675
NUM
10
11
41
42
43
44
SECTION AT CHAINAGE
MAT CAT TAI LYTRiNH" X=11000
y z
2640 -174
2440 -106
1820 -1698
1650 -1698
2079 -1698
1480 -1698
1------------------------------< CLIENT:
t - - - + - - - + - - - - - - - - - - - - - + - - - + - - - - + - - - - l CH09AUTLI:
~ ~ ~7 1~ t--~-+3-0I00_1_1 -+-2-~-.u-bm-m1-oo-~-lllch-nl~-1-d-.,,-------+A-. K--+----+----l HRB
SECTION AT CHAINAGE
MAT CAT T1!7
!ooY TRlNH
NUM Y z
11
42
43
44
SECTION AT CHAINAGE
MAT CAT T1!9
!ooY TRINH
0
NUM Y
11 2520 -105
41 1829 -1600
42 1658 -1879
43 2085 -1879
44 1488 -1879
SECTION AT CHAINAGE
MAT CAT TAI LYTRiNH• X=12000
NUM y
10 2680
11 2400
41 1815
42 1645
43 2074
44 1475
z
-103
-106
-1713
-1713
-1713
-1713
II
PROJECT IMPLEMENTATION CONSULTANT
lV VAN THIJC HIENDIJ AN
SYSTRAS.A
~ ~ ~ 1C 251D8110 U 1lld A.K
Ii; ., 1il t--
1
"'"
9
--+'2""3/08/1==0-+-U=PDA=J E D = - - - - - - - - - - - +A=.K"----F-'=--+=="---l HANOIMETROPOLITAN RAILTRANSPORT PROJECT BOARD
~ It 1A 31/01/10 Fir.t - - A. K BAN DI/ANDUONG llATflO Tlll~NQI
>- c ~ REVISION DATE OESCRIPTlON - l ' f Q1El:RJJl'f
~ ~ i SCIASOI NGAY NQIOlolG 80'AOOI !Elt IQIJ
PROJECT DIRECTORIGIAM!lOcDI./AN:
Alain B6chereau
Y=()Z=O
Y=()Z=O
Y=()Z=O
SECTION AT CHAINAGE
MAT CAT T1~~1 TRlNH
NUM Y z
SECTION AT CHAINAGE
MAT CAT TAI LYTRlNHX=10000
NUM y
10 2600 ~1 6
11 2480 -105
41 1824 -1684
42 1654 -1684
43 2084 -1684
44 1484 -1684
SECTION AT CHAINAGE
MAT CAT TAI LYTRiNH• X=13000
NUM y
9 2600
10 2720 -103
11 2360 -106
41 1811 -1727
42 1641 -1727
43 2070 -1727
44 1471 -1727
Y=OZ=O
Y=DZ=O
Y=OZ=O
NOTE~:------------------------------------------.
GHICHU
·ALLDIMENSIONS ARE IN MILLIMETERS.
TAtCAcAC i<ICHTHIJOO TliEO OON VI MM.
- THE TENDON LAYOIJT IS SY MMETRICAL TO THE SEGMENT CENTER LINE (Z=O)
MJl.T BANG c>i' LAEJOI XIJNGW I EJLIO'NG TAM PHAN ~ (Z=O)
- FOR GENERAL PfT SCHEME REFER TO DWG. No. PIC-TEc-GST-WVO.J00-18400-8.
- VOi BO TRI PITTONGTliE, XEM BAN Vi:: SO PIC-TEC-GST-WVOJ0().18400-8.
- FOR TENDON ELEVATION AND PLAN VIEW LAYOUT REFER TO DWG. No. PIC-TEC-GST-WVQ..J00-18401-8 TO PIC-TEC-GST-WVQ..J00-18407-B.
-VE MJl.TEJO'NG VA BO TRI MJl.T BANG cAP XEM BANVE SOPIC-TEC-GST-WVQ.J0().18401.aEJEN PIC-TEC-GST-WVOJ0().18407-B.
- FOR PRESTRESSING DETAIL AND SEQUENCES REFER TO DWG. No. PIC-TEC-GST-WVO-JOG-18408-8.
VE CHI TiETVATRINHTU' LING SuAT TRlJOC XEM BANVESOPIC-TEC-GST-WVOJ0().18408-8.
FILE NMIEITtNBANvE:
DESIGNED BYTlll"1~ : FORIMTIKl() BANv£:
A. K A1
STATUS lT1NH ~ :
Technical Design
DAlEINGAY:
31/01110
CHECl<EDBYsoAT: n.~ •-.-.i """"" '" _""_,,_, .,._ __,
G. Mauris n wholo or in portot.-forlll!'P'-wlhoo.l lhoprior-
1-----,,...--..,.......,,.....-1 permiHionofHRB.
CHIEFDESIGl'ERCHOttila,I THI~Kt : Mn ....,. "'°""°"""- w...,.-.i....,"""""""""'rnOI...,,..,
P. Arnaud .... ~ ma -o..,..,ID"llt'*" *'*' ""' """·
PROJECTDlfm: HANOI PILOTUGKT METRO LINE Sadlon Nhon- Hanoi RalwaySlatlon
TimNEllJOt.lG sAT00 THI THIElltMTP HANOi Eloftl Nh&i-Ge H~ NOi
TITLEl'ltNBAN1£: NHUE RIVER CROSSING
WQ'T SONG NHUI;:
DECK - PT - CROSS SECTIONS - 2 / 10
BAN M.!<T cAU - PT - M.!<T cAT - 2/ 10
DRAWINGNO. BANvESO :
PIC-TEC-GST-WVO-J04-18411-B 2A
~ '
SECTION AT CHAINAGE
MAT CAT TAI LY TRlNH• X=14000
NUM y
9 2560
10 2760 -102
11 2320 -107
41 1803 -1751
42 1633 -1751
43 2062 -1751
44 1463 -1751 044
SECTION AT CHAINAGE
MAT CAT T1!1
JJTRINH
NUM Y
8 2640
9 2440
10 2880
11 2200
41 1783
42 1613
43 2042
44 1443
SECTION AT CHAINAGE
MAT CAT TAI LYTRlNHX"20000
NUM y z
7 2560 -188
8 2760 -102
9 2320 -107
10 3000 -100
11 2080 -109
41 1765 -1818
42 1621 -1880
43 2023 -1880
44 1424 -1880
Y=OZ=O
Y=OZ=O
Y=OZ=O
1------------------------------< CLIENT:
t - - - + - - - + - - - - - - - - - - - - - + - - - - + - - - - + - - - l CH09AUTLI:
~ ~ ~7 1~ t--~-+3-0I00_1_1 -+-2-~-.u-bm-m1-oo-~-lllch-nl~-1-d-.,,--------+A-. K---+----+---l HRB
SECTION AT CHAINAGE
MAT CATTAILY TRlNH• X=15000
NUM y
9 2520
10 2800 -102
11 2280 -107
41 1796 -1774
42 1626 -1774
43 2055 -1774
44 1456 -1774
8 88ctt
SECTION AT CHAINAGE
MAT CAT T1!1
1JTRINH
NUM Y
8 2680
9 2400
10 2920
11 2160
41 1778
42 1608
43 2037
44 1438 044
SECTION AT CHAINAGE
NUM
7
8
9
10
11
41
42
43
44
MAT CAT TAI LYTRlNHX"21000
y
2520
2800
2280
3040
2040
1741
1717
2015
1416
z
-105
-102
-107
-100
-110
-1632
-1900
-1900
-1900
II
PROJECT IMPLEMENTATION CONSULTANT
lVVAN THIJCHIENDIJ AN
SYSTRAS.A
~ ~ ~ 1C 251D8110 U 1lld A. K
Ii; ., 1il t--
1
"'"
9
-+'2""3/08/1==0-+-'U=POA= J E D = - - - - - - - - - - - +...=.K"'----i='="-+=="--l HANOIMETROPOLITAN RAILTRANSPORT PROJECT BOARD
~ It 1A 31/01/10 Fir.t - - .... K BAN DI/ANDUONG llATflO TlllHA NQI
>- c ~ REVISION DATE OESCRIPTlON - l'f Q1El:RJJl'f
~ ~ i SCIASOI NGAY NQIOlolG 80'AOOI Hilt IQIJ
PROJECT DIRECTORIGIAM!lOcIll./AA:
Alain B6chereau
Y=OZ=O
Y=OZ=O
Y=OZ=O
~t?i~~:
-ALLDIMENSIONS ARE IN MILLIMETERS.
TAT cA cAC KICH Tlil/OC THEO EO'NVI MM.
SECTION AT CHAINAGE
MAT CATTAILY TRlNH• X=16000
NUM y
8 2600
9 2480 -105
10 2840 -102
11 2240 -108
41 1788 -1798
42 1618 -1798
43 2047 -1798
44 1448 -1798
SECTION AT CHAINAGE
MAT CAT T1!1
!JTRlNH
NUM Y
7 2600
8 2720
9 2360
10 2960
11 2120
41 1772
42 1602
43 2032
44 1432
SECTION AT CHAINAGE
MAT CAT TAI LYTRlNHX"21620
0 0 0
NUM y z
7 2495 -105
8 2825 -102
9 2255 -107
10 3065 -99
11 2015 -110
41 1724 -1496
42 1747 -1916
43 2010 -1916
44 1411 -1916
- THE TENDON LAYOIJT IS SYMMETRICAL TO THE SEGMENT CENTER LINE (Z=O)
M~T BANG cAP LA001 XIJ'NG VOi Ell/ONGTAM PHAN OOAN (Z=<J)
- FOR GENERAL PIT SCHEME REFER TO DWG. No. PIC-TEC-GST-WV~OD-1 8400-8.
- VOi BOTRI PIT TONG THE, XEM BANVE SOPIC-TEC-GST-wvo.J00-1840().8.
Y=OZ=O
Y=OZ=O
Y=OZ=O
- FOR TElllDON ELE'!_~TION AND PLAN VIEW LAYOUT REFER TO DWG. No. PIC-TEC-GST-WVO.J00-18401-B TO PIC-TEC-GST-WVO.J00-18407-B.
- VE-~T El/NG VA BOTru ~T BANG cAP XEM ~~SO PIC-TEC-GST-WVO-J00.18401-BEEN PIC-TEC-GST-WVO-J00-18407.S.
- FOR PRESTRESSING DETAIL AND~EQUENCES REFER TO DWG. No. PIC-TEC-GST-WVO.JOD-18408-8.
v£ CHI TIET VA TRINH Tl/ lJNGSuA.T TRllv... XEM BAN'/£"SO PIC-TEC-GST-WVO-J00-18408-8.
FILE NMIEITtNBANvE:
DESIGNED BYTlll"1~ : FORIMTIKl() BANv£:
A. K A1
STATUS lT1NH ~ :
Technical Design
DAlENGAY:
31/01110
CHECl<EDBYsoAT: n.~ •-.-.i """"" "" _""_,,_, .,._ __,
G. Mauris n whol1 or inpor1..-.-ror..,,. p,_w111oo.1 111opr1or-
1-----,,...--..,......,....-1 permiHionofHRB.
CHIEFDESIGNERCHOttila,I THI~Kt : Mn ....,. "'°""°"""- w...,.-.i....,"""""""""''"°'...,,...,P.Arnaud .... ~ ma -o..,..,ID"llt'*" *.., ""' """·
PRO.ECTDlfm: HANOI PILOTUGKT METRO LINE Sadlon Nhon- Hanoi RalwaySlatlon
TimNEllJOt.lG sAT00 THI THIElltMTP HANOi Eoftl Nh&i -Ge H~ NOi
TITLEITtNBANvE: NHUE RIVER CROSSING
WQ'T SONG NHUI;:
DECK - PT - CROSS SECTIONS - 3 / 10
BAN M.!<T cAU - PT - M.!<T cAT - 3/ 10
DRAWINGNO. BANvESO:
PIC-TEC-GST-WVO-J04-18412-B 2A
~ '
SECTION AT CHAINAGE
MAT CAT TAI LYTRlNHX=22000
NUM y
6 2600 -320
7 2480 -105
8 2840 -102
9 2240 -108
10 3080 -99
11 2000 -110
42 1748 -1926
43 2007 -1926
d'444 1408 -1926
SECTION AT CHAINAGE
MAT CAT TAI LY TRlNHX=24620
0 0 0 0
NUM y
6 2705 -103
7 2375 -106
8 2945 -101
9 2135 -109
10 3185 -98
11 1895 -111
42 1691 -1599
43 1884 -2019
44 1541 -2019
SECTION AT CHAINAGE
MAT CAT TAI LY TRiNH• X=27000
0 0 0 d
NUM y z
5 2520 -105
6 2800 -102
7 2280 -107
8 3040 -100
9 2040 -110
10 3280 -97
11 1800 -112
43 1626 -1854
44 1559 -2123
Y=OZ=O
Y=OZ=O
1-----------------------------< CLIENT:
t - - - + - - - + - - - - - - - - - - - - - + - - - - + - - - - + - - - l CH09AUTLI:
~ ~ ~7 1~ t--~-+3-0I00_1_1-+-2-~-.u-bm-m1-oo-~-lllch-nl~-1-d-.,,-------+A-. K---+----+---l
NUM
6
7
8
9
10
11
42
43
44
NUM
5
8
7
8
9
10
11
43
44
NUM
5
6
7
8
9
10
11
43
44
HRB
SECTION AT CHAINAGE
MAT CAT TAI LYTRlNHX=23000
y
2640 -179
2440 -106
2880 -101
2200 -108
3120 -99
1960 -110
1736 -1905
1931 -1962
1433 -1962
SECTION AT CHAINAGE
MAT CAT TAI LY TRlNHX'"25000
0 0
y
2600 -328
2720 -103
2360 -106
2960 -100
2120 -109
3200 -98
1880 -111
1843 -2033
1544 -2033 0
SECTION AT CHAINAGE
MAT CAT TAI LYTRiNH" X=27620
y
2495
2825
2255
3065
2015
3305
1775
1558
1563
z
-105
-102
-107
-99
-110
-97
-112
-1731
-2151
II
PROJECT IMPLEMENTATION OONSULTANT
lV VAN THIJC Hl~N DIJ AN
SYSTRAS.A
~ ~ ~ 1C 251D8110 U 1lld A. K
Ii; ., 1il t--
1
""
9
-+'2""3/08/1==0-+-U=PDA=JED=-----------+A=.K"'----F-'=--+=="--l HANOI METROPOLITAN RAIL TRANSPORT PROJECT BOARD
~ It 1A 31/01/10 Fi..tleaJo A.K BANDl/ANfllKINGllATOOTHl~NQI
I- c ~ REVISION DATE DESCRIP'TlON - l ' f Q1El:RJJl'f
~ ~ i SCIASOI NGAY NQI DlolG 80'AOOI !Elt IQIJ
PROJECTDIRECTORIGIAM!lOcIll./AN:
Alain B6chereau
Y=OZ=O
Y=OZ=O
Y=OZ=O
SECTION AT CHAINAGE
MAT CAT TAI LYTRlNHX=24000
NUM y
6 2680 -103
7 2400 -106
8 2920 -101
9 2160 -108
10 3160 -98
11 1920 -111
42 1708 -1729
43 1949 -1997
44 1509 -1997 0
SECTION AT CHAINAGE
MAT CAT TAI LY TRlNHX=26000
NUM y
5 2560 -188
6 2760 -102
7 2320 -107
8 3000 -100
9 2080 -109
10 3240 -98
11 1840 -112
43 1734 -2021
44 1551 -2078
SECTION AT CHAINAGE
MAT CAT TAI LYTRiNH" X=28000
NUM y
4 2600
5 2480
6 2840
7 2240
8 3080
9 2000
10 3320
11 1760
44 1566
Y•OZ•O
Y•OZ=O
Y•OZ=O
NOTE~:------------------------------------------.
GHICHU
- ALL DIMENSIONS ARE IN MILLIMETERS.
TAT cAcAc KlCH THl!OC THEO f)()'N VI MM.
- THE TENDON LAYOl/T IS SYMMETRICAL TO THE S EGMENT CENTER LINE (Z=O)
~T BANG GAP LA £l01 XlJNG W I Ell!O'NG TAM PHAN~ (Z=O)
- FOR GENERAL PIT SCHEME REFER TO DWG. No. PIC-TEC-GST-WVO-J00-18400-B.
• VOi BO TRI PIT TONG n-fi;_, XEM BAN yi; SO PIC-TEC-GST-WVO-J0().184QO.B.
·FOR TElIDON,Eley,~TION AND PLAN VIEW LAYOUT REFER TO DWG. No. PIC-TEC-GST-WVO-J00-18401-8 TO PIC-TEC-GST-WVO-J00-18407-8.
- v~=~TEll!NG v,.. 00"1.... M"'T BANG cAP XEM MN vi:so PIC-TEC-GST-WVO-J0().18401-a El!ON PIC-TEC-GST-WVO-J0().18407-B.
·FOR PRESTRESSING DETAIL AND SEQUENCES REFER TO DWG. No. PIC-TEC-GST-WVO-J00-18408-B.
V£ CHI Ti~ VA TRINH lV IJNG SUAT TRlJO'c XEM BAN~SO PIC-TEC-GST-WVO-J0().18408-B.
FILE NMIEITtNBANvE:
DESIGNED BYTllli;r~ : FORIMTIKl() BANv£:
A. K A1
STATUS lT1NH~:
Technical Design
DAlEINGAY:
31/01110
CHECl<EDBYsoAT : n.~•-'11""""",__.,._,,_, .,._ __.
G. Mauris n whol1or inpor1.,..-ror..,,.p,_w111oo.1111opr1or-
1-----.,...--..,.......,,....-1 permiHionofHRB.
CHIEFDESIGl'ERCHOttila,I THI~Kt: Mn ....,. "'°""°"""-w'*''II....,"""""""""'rnOI,.....,
P. Arnaud .... ~ma-o..,..,ID'llt'*"*'*'""' """·
PRO.ECTOlf AN : HANOI PILOTUGKT METRO LINE Sadlon Nhon- Hanoi RalwaySlatlon
TimN EllJOt.lG sAT00 THITHIElltMTP HANQI Eloftl Nh&i-Ge H~ NOi
TITLEl'ltNBANvE: NHUE RIVER CROSSING
WQ'T SONG NHUI;:
DECK - PT - CROSS SECTIONS - 4 / 10
BAN M.!<T cAU - PT - M.!<T cAT - 4 / 10
DRAWINGNO. BANvESO :
PIC-TEC-GST-WVO-J04-18413-B 2A
~ '
SECTION AT CHAINAGE
MAT CAT T11s~t TRlNH
0
NUM Y
4 2615 -269
5 2465 -105
6 2855 -101
7 2225 -108
8 3095 -99
9 1985 -110
10 3335 -97
11 1745 -113
22 1920 -562
44 1569 -2185
SECTION AT CHAINAGE
MAT CAT T11,~'t TRlNH
0 0 0
NUM Y z
4 2705 -103
5 2360 -106
6 2945 -101
7 2120 -109
8 3185 -98
9 1880 -111
10 3425 -96
11 1640 -114
22 2002 -228
44 1494 -1890
SECTION AT CHAINAGE
MAT CAT T1!32
1J'TRlNH
NUM Y
3 2600 -183
4 2763 -102
5 2360 -106
6 3003 -100
7 2120 -109
8 3243 -98
9 1880 -111
10 3483 -95
11 1640 -114
21 1944 441
22 2051 -228
Y=OZ=O
1------------------------------< CLIENT:
t - - - + - - - + - - - - - - - - - - - - - + - - - - + - - - - + - - - l CH09AUTLI:
~ ~ ~7 1~ t--~-+3-0I00_1_1-+-2-~-.u-bm-m1-oo-~-lllch-nl~-1-d-.,,-------+A-. K---+----+---l HRB
SECTION AT CHAINAGE
MAT CAT T1~~% TRlNH
NUM Y
4 2640 -181
5 2437 -106
8 2880 -101
7 2197 -108
8 3120 -99
9 1957 -110
10 3360 -96
11 1717 -113
22 1944 441
44 1569 -2165
SECTION AT CHAINAGE
MAT CAT T11lJ TRlNH
0 0
NUM Y z
3 2600 ~5
4 2720 -103
5 2360 -106
6 2960 -100
7 2120 -109
8 3200 -98
9 1880 -111
10 3440 -96
11 1640 -114
22 2002 -228
SECTION AT CHAINAGE
MAT CAT T1MJ' TRlNH
NUM Y
3 2600 -104
4 2824 -102
5 2360 -106
6 3064 -99
7 2120 -109
8 3304 -97
9 1880 -111
10 3544 -95
11 1640 -114
21 1982 -271
22 2194 -228
II
PROJECT IMPLEMENTATION CONSULTANT
lV VAN THIJC Hl~N DIJAN
SYSTRAS.A
~ ~ ~ 1C 251D8110 U 1lld A.K
Ii; ., 1il t--
1
"'"
9
-+'2""3/08/1==0-+-U=PDA=J E D = - - - - - - - - - - - + A =.K"'----t='=--+=="--l HANOI METROPOLITAN RAIL TRANSPORT PROJECT BOARD
~ It 1A 31/01/10 Fir.tleaJo A.K BANDl/ANfllKINGllATOOTHl~NQI
>- c ~ REVISION DATE OESCRIP'TlON - l ' f Q1El:RJJl'f
~ ~ i SCIASOI NGAY NQI 01.1o1G 80'AOOI !Elt IQIJ
PROJECTDIRECTORIGIAM!lOcDI./AN:
Alain B6chereau
Y=OZ=O
Y=OZ=O
Y=OZ=O
SECTION AT CHAINAGE
MAT CAT T1!3
!J'TRlNH
NUM Y
4 2880 -103
5 2376 -106
6 2920 -101
7 2136 -109
8 3160 -98
9 1896 -111
10 3400 -96
11 1856 -113
22 1982 -270
44 1527 -2008
SECTION AT CHAINAGE
MAT CAT T1J3
lJTRlNH
0 0
NUM Y z
3 2600 -271
4 2735 -103
5 2360 -106
6 2975 -100
7 2120 -109
8 3215 -98
9 1880 -111
10 3455 -95
11 1640 -114
21 1920 -562
22 2007 -228
SECTION AT CHAINAGE
MAT CAT T11h% TRlNH
NUM Y
2509 -611
2 2600 -325
3 2600 -104
4 2840 -102
5 2360 -106
6 3080 -99
7 2120 -109
8 3320 -97
9 1880 -111
10 3560 -94
11 1640 -114
21 2002 -230
22 2242 -228
Y=OZ=O
Y=OZ=O
Y=OZ=O
NOTES:-L____________________..::::================::::::1------------.GHICHU
-AU. DIMENSIONS ARE IN MILLIMETERS.
TAT CAC.Ac i<ICH THl/OCTHEO EO'N vr MM.
-THETENDONLAYO~T rs SYMMETRICAL TO THE SEGMENT CENTER LINE {Z=O)
~T EWIG CAP iJfl01 Xl/NG VOi El/ONG TAM PHAN E~N (Z=O)
- FOR GEllrERAL PIT SCHEME REFER TO DWG. No. PIC-TEC-GST-WVo-JOD-18400-8.
- VOi BO-TR PtrrONG TH~. XEM BAN VE slYPIC.TEC.GST-WVQ.-J00.1840CH!.
- FOR TEl']IDON ELEVATION AND PLAN VIEW LAYOUT REFER TO DWG. No. PIC-TEc-GST-WVO.J00-18401-8 TO PIC-TEc-GST-WVO.J00-18407-8.
- ~ ~T Ell/NG VA BO TRI M~T BANG GAP XEM BAN~ 50 PIC.TEC.GST-WVOJOG-18401-B Di=N PIC.TEC-GST-WVOJOG-18407-6.
- FOR PRESTRESSING DETAIL AND~EQUENCES REFER TO DWG. No. PIC-TEC-GST-WVO.JOD-18408-8.
~ CHI Tli::t VA TRINH 111 l/NG SUl:T TRllv" XEM BAiiiVI:SO PIC.TEC.GST-WVQ.-J00.184Q8.a.
FILENMIEITtNBANvE:
DESIGNED BYTllli;r~ : FORIMTIKl() BANv£:
A. K A1
STATUS lT1NH~:
Technical Design
DAlENGAY:
31/01110
CHECl<EDBYsoAT : n.~•-.-.i"""""""_""_,,_, .,._ __,
G. Mauris n whol1orinpor1.,..-ror..,.p,_w111oo.1111opr1or-
1-----,,...--..,.......,,........i permiHionofHRB.
CHIEFDESIGl'ERCHOttila,I THI~Kt: Mn .. n0y "'°""°"""-w...,.-.i....,"""""""""'rnOI,.....,
P. Arnaud .... ~ma-o..,..,ID"llt'*"*'*'""' """·
PRO.ECTDlf AN : HANOI PILOTUGKT METRO LINE Sadlon Nhon- Hanoi RalwaySlatlon
TimN EllJOt.lG sAT00 THI THIElltMTP HANOi Eoftl Nh&i· Ge H~ NOi
TITLEl'ltNBAN1£: NHUE RIVER CROSSING
WQ'T SONG NHUI;:
DECK - PT - CROSS SECTIONS - 5 / 10
BAN M.!<T cAU - PT - M.!<T cAT - 5 / 10
DRAWINGNO. BANvESO :
PIC-TEC-GST-WVO-J04-18414-B 2A
MAT CAT TJ}!JJ' TRINH
NUM Y
1 2489 -417
2 2605 -282
3 2600 -104
4 2840 -102
5 2360 -106
6 3080 -99
7 2120 -109
8 3320 -97
9 1880 -111
10 3560 -94
11 1640 -114
21 2002 -230
22 2242 -228
SECTION AT CHAINAGE
MAT CAT TAI LY TRiNH• X=38500
NUM
2
3 2600 -104
4 2840 ·102
5 2360 ·106
6 3080 -99
7 2120 ·109
8 3320 .97
9 1880 ·111
10 3560 -94
11 1640 -114
21 2002 -230
22 2242 -228
51 2289 -584
52 2137 -1059
53 2045 -1336
r
sbi
I

52 I
QI
I
53d

I

I





SECTION AT CHAINAGE
MAT CAT TAI LY TRlNH" X=42000
NUM Y
2489 -417
2 2605 -282
3 2600 -104
4 2840 -102
5 2360 -106
6 3080 -99
7 2120 -109
8 3320 -97
9 1880 -111
10 3560 -94
11 1640 ·114
21 2002 ·230
22 2242 ·228
51 2420 -837
52 2254 -1086
53 2165 -1329
1----+-----------------<>----+-------< CLIENT:
t---+---+---------------l,.__--+---+----l CH09AUTLI:
HRB
NUM y z
2469 -290
2 2609 -274
3 2600 -104
4 2840 -102
5 2360 -106
6 3080 -99
7 2120 -109
8 3320 -97
9 1880 -111
10 3560 -94
11 1640 -114
21 2002 -230
22 2242 -228
SECTION AT CHAINAGE
MAT CATTAILY TRiNH• X=40000
MAT CAT TJ}1~t TRINH
NUM y
2449 -274
2 2614 -274
3 2600 -104
4 2840 -102
5 2360 -106
6 3080 -99
7 2120 -109
8 3320 -97
9 1880 -111
10 3560 -94
11 1640 -114
21 2002 -230
22 2242 -228
51 1949 -584
52 1858 -991
53 1744 -1348

I

I



SECTION AT CHAINAGE
MAT CAT TAI LYTRiNH• X=41000
Y=DZ=D
--------1
Y=DZ=O
0 0
~ c,°o~oR - - - - - - --------r __ _ __
NUM y
2449
2 2614 -274
3 2600 ·104
4 2840 ·102
5 2360 ·106
6 3080 -99
7 2120 ·109
8 3320 -97
9 1880 -111
10 3560 -94
11 1640 -114
21 2002 -230
22 2242 -228
51 2420 -584
52 2254 -1086
53 2165 -1329
d1:
I

52 1
0 
<!I
I


I

I
I

,_
--
SECTION AT CHAINAGE
MAT CAT TAI LY TRlNH• X=43000
NUM Y
2509 ~11
2 2600 -325
3 2600 -104
4 2840 -102
5 2360 -106
6 3080 -99
7 2120 -109
8 3320 -97
9 1880 -111
10 3560 -94
11 1640 ·114
21 2002 ·230
22 2242 ·228
51 2420 -895
52 2254 -1086
53 2165 -1329
II
PROJECT IMPLEMENTATION OONSULTANT
lV VAN THIJC HIENDIJ AN
SYSTRAS.A
PROJECT DIRECTORIGIAM!lOcDI./AA:
Alain B6chereau
NUM y
2469
2 2609 -274
3 2600 ·104
4 2840 ·102
5 2360 ·106
6 3080 .99
7 2120 ·109
8 3320 .97
9 1880 -111
10 3560 -94
11 1640 -114
21 2002 -230
22 2242 -228
51 2420 ~43
52 2254 -1086
53 2165 -1329
SECTION AT CHAINAGE
MAT CAT TAI LYTRlNH" X=44000
FILE NMIEITtNBANvE:
DESIGNED BYTllli;r~ : FORIMTIKl() BANv£:
A. K A1
NUM Y
3 2600 -104
4 2824 -102
5 2360 -106
6 3064 -99
7 2120 -109
8 3304 -97
9 1880 -111
10 3544 -95
11 1640 -114
21 1982 ·271
22 2194 ·228
51 2420 -895
52 2273 ·1090
53 2185 ·1329
STATIJS lT1NH ~ :
Technical Design
DAlENGAY:
31/01110
CHECl<EDBYsoAT: n.~ •-'11 """"" "" _""_,,_, .,._ __,
G. Mauris n whol1 or in portot.-forany p,_w111oo.1 111opr1or-
1-----...,...---,.....,..-1 permiHionofHRB.
CHIEFDESIGNERCHONHla,I THI~Kt : Mn .. n0y "'°""°"""- w'*''II....,"""""""""''"°'...,,...,P. Arnaud .... ~ ma -o..,..,ID"llt'*" *'*' ""' """·
Y=DZ=O
PRO.ECTDlfm: HANOI PILOTUGKT METRO LINE Sadlon Nhon- Hanoi RalwaySlatlon
TimNEllJOt.lG sAT00 THI THIElltMTP HANOi Eloftl Nh&i-Ge H~ NOi
TITLEl'ltNBANvE: NHUE RIVER CROSSING
WQ'T SONG NHUI;:
DECK - PT - CROSS SECTIONS - 6 / 10
BAN M.!<T cAU - PT - M.!<T cAT - 6/ 10
DRAWINGNO. BAN~SO:
PIC-TEC-GST-WVO-J04-18415-B 2A
SECTION AT CHAINAGE
MAT CAT TAI LYTRlNH• X=46000
NUM Y Z
3 2600 -183
4 2763 -102
5 2360 -106
6 3003 -100
7 2120 -109
8 3243 -98
9 1880 -111
10 3483 -95
11 1640 -114
21 1944 -441
22 2051 -228
51 2420 ~95
52 2334 -1105
53 2165 -1329
SECTION AT CHAINAGE
MAT CAT TAI LYTRlNH• X=46380
NUM Y
4 2705
5 2360
6 2945 -101
7 2120 -109
8 3185 -98
9 1880 -111
10 3425 -98
11 1640 -114
22 2002 -228
37 1494 -1890
51 2420 ~95
52 2352 -1109
53 2166 -1329
0 0 0
022
SECTION AT CHAINAGE
MAT CAT T~i.!J TRlNH
0
NUM Y z
4 2615 -269
5 2465 -105
8 2855 -101
7 2225 -108
8 3095 -99
9 1985 -110
10 3335 -97
11 1745 -113
22 1920 -062
37 1569 -2185
51 2420 ~95
52 2352 -1109
53 2283 -1324
SECTION AT CHAINAGE
MAT CAT TAI LY TRlNH• X=45620
NUM Y Z
3 2600 -271
4 2735 -103
5 2360 -106
6 2975 -100
7 2120 -109
8 3215 -98
9 1880 -111
10 3455 -95
11 1640 -114
21 1920 -082
22 2007 -228
51 2420 ~95
52 2352 -1109
53 2165 -1329
SECTION AT CHAINAGE
MAT CAT TAI LYTRlNH" X"47000
NUM Y
4 2680
5 2376
6 2920 -101
7 2136 -109
8 3160 -98
9 1898 -111
10 3400 -98
11 1656 -113
22 1982 -270
37 1527 -2008
51 2420 ~95
52 2352 -1109
53 2188 -1328
SECTION AT CHAINAGE
MAT CAT T~!JJ'TRlNH
NUM Y
4 2800 -323
5 2480 -105
8 2840 -102
7 2240 -108
8 3080 -99
9 2000 -110
10 3320 -97
11 1760 -112
37 1568 -2168
51 2420 ~95
52 2352 -1109
53 2285 -1324
Y=DZ=O
SECTION AT CHAINAGE
MAT CAT TAI LY TRlNH" X"46000
NUM Y Z
3 2800 -325
4 2720 -103
5 2360 -106
6 2960 -100
7 2120 -109
8 3200 -98
9 1880 -111
10 3440 -98
11 1840 -114
22 2002 -228
51 2420 -895
52 2352 -1109
53 2165 -1329
SECTION AT CHAINAGE
MAT CAT TAI LYTRlNH• X"48000
NUM Y
4 2640
5 2437
6 2880 -101
7 2197 -108
8 3120 -99
9 1957 -110
10 3380 -98
11 1717 -113
22 1944 -441
37 1569 -2165
51 2420 -895
52 2352 -1109
53 2282 -1325
SECTION AT CHAINAGE
MAT CAT T~i.IJ TRlNH
0 0
NUM Y
5 2495 -105
8 2825 -102
7 2255 -107
8 3065 -99
9 2015 -110
10 3305 -97
11 1775 -112
36 1558 -1731
37 1563 -2151
51 2420 -895
52 2352 -1109
53 2285 -1324
Y=OZ=O
~~1~~:~--------------------------------------~
1-------------------------------< CLIENT:
t - - - + - - - + - - - - - - - - - - - - - + - - - - + - - - - + - - - l CH09AUTLI:
:i: '
~ ~ ~7 1~ t--~-+3-0I00_1_1-+-2-~-.u-bm-m1-oo-~-lllch-nl~-1-d-.,,--------+A-. K---+----+---l
~ ~ ~ 1C 251D8110 U 1lld A.K
Ii; ., 1il t--
1
"'"
9
--+'2""3/08/1==0-+-'U=POA=J E D = - - - - - - - - - - - + A =.K"'"----i='='"-+=="--l HANOI METROPOLITAN RAILTRANSPORT PROJECT BOARD
~ It 1A 31/01/10 Fir.t - - A. K BAN DI/ANDUONG llATflO Tlll~NQI
>- c ~ REVISION DATE OESCRIPTlON - l ' f il1El:RJJl'f
~ ~ i SCIASOI NGAY NQI OlolG 80'AOOI !Elt IQIJ
HRB
II
PROJECT IMPLEMENTATION CONSULTANT
lV VAN THIJC Hl~N DIJ AN
SYSTRAS.A
PROJECTDIRECTORIGIAM!lOcDI./AN:
Alain B6chereau
-ALL DIMENSIONS ARE IN MILLIMETERS.
TATCACAC KICH THU'OCTHEOOONVI MM.
- THg.TJ:ND01:"11
LAYOUT IS SYMMETRICAL TO THE SEGMENT CENTER LINE (Z=O)
~T """'G CAP'""DOI Xl/NG W I aO'ONG TAMPHAN a~ (Z"())
- FOR GENERAL PfT SCHEME.REl'ER TO DWG. No. PIC-TEC-GST-WVO-J00-18400-B.
- VOi BO"TRf PIT TONG TH£, XEM BANVl:SO PIC-TEC-GST-WVO._JOC>-184llD-B.
- FOR TE~DON.
1ELEVATION~1ND P.LAN VIEW LAYOUT REFER TO DWG. No. PIC-.JEC-GST-WVO-J00-18401-B TO PIC-TEC-GST-WVO-J00-18407-B.
-VE M,!.Tf)IJNG V" BO TRI M,!.T """'G cAPXEM BAN VE SO PIC-TEC-GST-WVO._J00.18401-B f)o;N PIC-TEC-GST-WVO._J00.184ll7-B.
- FOR PRESTRESSIN~ DETAIL AND SEQUENCES.REFER TO DWG. No. PIC-TEC-GST-WVO-JOG-18408-B.
VE CHI Tie!T VA TRINH TV U'NG SuAT TRU'OC XEM BAN VE SO PIC-TEC-GST-WVO._JQ[).18408-6.
FILENMIEITtNBANvE:
OESIGNED BYTllli;r~ : FORIMTIKl() BANv£:
A. K A1
STATUS lT1NH~:
Technical Design
OAlENGAY:
31/01110
CHECl<EOBYsoAT : n.~•-.-.i"""""""_""_,,_, .,._ __,
G. Mauris n whol1orinport.,..-ror..,.p,_w111oo.1111opr1or-
1-----,,....--..,......,,....-1 permiHionofHRB.
CHIEFDESIGl'ERCHOttila,I THI~Kt: Mn .. n0y "'°""°"""-w...,.-.i....,"""""""""'rnOI,.....,
P. Arnaud .... ~ma-o..,..,ID"llt'*"*'*'""' """·
PRO.ECTDlf AN : HANOI PILOTUGKT METRO LINE Sadlon Nhon- Hanoi RalwaySlatlon
TimN EllJOt.lG sAT00 THI THIElltMTP HANQI Eloftl Nh&i-Ge H~ NOi
TITLEl"ltNBAN1£: NHUE RIVER CROSSING
WQ'T SONG NHUI;:
DECK - PT - CROSS SECTIONS - 7 / 10
BAN M.!<T cAU - PT - M.!<T cAT - 7/ 10
DRAWINGNO. BANv£SO:
PIC-TEC-GST-WVO-J04-18416-B 2A
SECTION AT CHAINAGE
MAT CAT TAI LY TRlNHX"50000
Y=OZ=O
NUM y
5 2520 -105
6 2800 -102
7 2280 -107
8 3040 -100
9 2040 -110
10 3280 -97
11 1800 -112
36 1626 -1854
37 1559 -2123
51 2420 -895 0
37
52 2352 -1109
53 2285 -1324
SECTION AT CHAINAGE
MAT CAT T1JJJ TRiNH
Y=OZ=O
0 0
NUM y z
6 2705 -103
7 2375 -106
8 2945 -101
9 2135 -109
10 3185 -98
11 1695 -111
35 1691 -1599
36 1884 -2019
37 1541 -2019
51 2420 -895
52 2352 -1109
53 2285 -1324
SECTION AT CHAINAGE
MAT CAT TAI LYTRlNHX=65000
Y=OZ=O
NUM y
6 2600 -320
7 2480 -105
8 2840 -102
9 2240 -108
10 3080 -99
11 2000 -110
35 1748 -1926
36 2007 -1926
~37 1408 -1926
0 0
35 37
51 2420 -895
52 2352 -1109
53 2285 -1324
1-------------------------------< CLIENT:
t - - - + - - - + - - - - - - - - - - - - - + - - - - + - - - - + - - - - l CH09AUTLI:
~ '~ ~ ~7 1~ t--~-+3-0I00_1_1 -+-2-~-.u-bm-m1-oo-~-lllch-nl~-1-d-.,,--------+A-. K---+----+----l
NUM
5
8
7
8
9
10
11
36
37
51
52
53
NUM
6
7
8
9
10
11
35
36
37
51
52
53
NUM
7
8
9
10
11
34
35
36
37
51
52
53
HRB
SECTION AT CHAINAGE
MAT CAT TAI LYTRlNHX"51000
y
2560 -186
2760 -102
2320 -107
3000 -100
2080 -109
3240 -98
1840 -112
1734 -2021
1551 -2078
2420 -895
2352 -1109
2285 -1324
SECTION AT CHAINAGE
MAT CAT T1!JJ TRiNH
y z
2680 -103
2400 -106
2920 -101
2160 -108
3160 -98
1920 -111
1708 -1729
1949 -1997
1509 -1997
'1 ff2420 -895
2352 -1109
2285 -1324
SECTION AT CHAINAGE
MAT CAT TAI LYTRlNHX=55380
y z
2495 -105
2825 -102
2255 -107
3065 -99
2015 -110
1724 -1496
1747 -1916
2010 -1916
g ~ 0
1411 -1916 37
2420 -895
2352 -1109
2285 -1324
II
PROJECT IMPLEMENTATION OONSULTANT
lV VAN THIJC Hl~N DU' AN
SYSTRAS.A
~ ~ ~ 1C 251D8110 U 1lld A.K
Ii; ., 1il t--
1
""
9
--+'2""3/08/1==0-+-'U=PDA= J E D = - - - - - - - - - - - +A=.K"'----F-'="-+=="---l HANOI METROPOLITAN RAIL TRANSPORT PROJECT BOARD
~ It 1A 31/01/10 Fir.tleaJo A.K BANDl/ANfllKINGllATOOTHl~NQI
>- c ~ REVISION DATE OESCRIP'TlON - l'f Q1El:RJJl'f
~ ~ i SCIASOI NGAY NQIOlolG 80'AOOI !Elt IQIJ
PROJECT DIRECTORIGIAM!lOcIll./AA:
Alain B6chereau
SECTION AT CHAINAGE
MAT CAT TAI LY TRlNHX"52000
Y=OZ=O Y=OZ=O
NUM y
5 2600 -328
8 2720 -103
7 2360 -106
6 2960 -100
9 2120 -109
10 3200 -98
11 1880 -111
36 1843 -2033
37 1544 -2033
~
0
51 2420 -895 37
52 2352 -1109
53 2285 -1324
SECTION AT CHAINAGE
MAT CAT TAI LYTRiNH
Y=OZ=O
" X=54DDD
Y=OZ=O
NUM y
6 2640
7 2440
8 2880
9 2200
10 3120 -99
11 1960
35 1736
36 2003
37 1433 ~
51 2420
52 2352 -1109
53 2285 -1324
SECTION AT CHAINAGE
MAT CAT TAI LY TRlNHX"56000
Y=OZ=O Y=OZ=O
NUM y
7 2520 -105
8 2800 -102
9 2280 -107
10 3040 -100
11 2040 -110
34 1741 -1632
35 1717 -1900
36 2015 -1900
g ~ ~37 1416 -1900
51 2420 -895
52 2352 -1109
53 2285 -1324
NOTES:~--------------------------------------~
GHICHU
-ALLDIMENSIONS ARE IN MILLIMETERS.
TJl.t CACAC i<ICH THLJOC THEOOON VI MM.
- TH~,T,ENDON LAYOIJT IS SYMMETRICAL TO THE SEGMENT CENTER LINE (Z=O)
WIT """'G CAP i..AEOI XLJNG VOi EJLJO'NG TAM PHANEl°"'N (Z=D)
- FOR GENERAL PIT SCHEME REFER TO DWG. No. PIC-TEC-GST-WVO-J00-18400-B.
- VOi BO-TRIPFTTONG THE, XEM 81N VE SCYPIC-TEC-GST-WVO-J00-18400-a.
- FOR TENDON ELEVATION AND PLAN VIEW LAYOUT REFER TO DWG. No. PIC-TEC-GST-WVO-J00-18401-B TO PIC-TEC-GST-WVO-J00-18407-B.
-ve WITElO'NG VA 80 TR1 M}!.T BANG cAPXEM BAN ve soPIC-TEC-GST-WVO-JDl>-18401-BDEN PIC-TEC-GST-WVO-JDG-18407-a.
- FOR PRESTRESSING DETAILAND SEQUENCES REFER TO DWG. No. PIC-TEC-GST-WVO-J00-18406-B.
ve CHI TieT VA TRINH TU' LING SuAT 1Rl!OCXEM BAN ve so PIC-TEC-GST-WVO-JDl>-184Q8-8.
FILE NMIEITtNBANvE:
DESIGNED BYTllli;r~ : FORIMTIKl() BANv£:
A. K A1
STATIJS lT1NH ~ :
Technical Design
DAlENGAY:
31/01110
CHECl<EDBYsoAT: n.~•-'11 """"" "" _""_,·_,.,._ __,
G. Mauris n wholo or in portor.-forln!'P'-wlhoo.l lhoprior-
1-----,,....--..,.......,,..--1 permiHionofHRB.
CHIEFDESIGl'ERCHONHla,I THI~Kt: Mn ....,. "'°""°"""- w"'"".....,"""""""""''"°'...,,...,P.Arnaud .... ~ ma -o..,..,ID'llt'*" *.., ""' """·
PRO.ECTDlfm: HANOI PILOTUGKT METRO LINE Sadlon Nhon- Hanoi RalwaySlatlon
TimNEllJOt.lG sAT00 THI THIElltMTP HANOi Eoftl Nh&i -Ge H~ NOi
TITLEl'ltNBANvE: NHUE RIVER CROSSING
WQ'T SONG NHUI;:
DECK - PT - CROSS SECTIONS - 8 / 10
BAN M.!<T cAU - PT - M.!<T cAT - 8 / 10
DRAWINGNO. BANv£SO:
PIC-TEC-GST-WVO-J04-18417-B 2A
SECTION AT CHAINAGE
MAT CAT TAI LYTRlNHX"57000
Y=OZ=O
NUM y
7 2560 -188
8 2760 -102
9 2320 -107
10 3000 -100
11 2080 -109
34 1765 -1818
35 1621 -1880
36 2023 -1880 0
37 1424 -1880 37
51 2420 -895
52 2352 -1109
53 2285 -1324
SECTION AT CHAINAGE
MAT CAT TAI LYTRlNHX"59000
Y=OZ=O
NUM y
8 2680 -103
9 2400 -106
10 2920 -101
11 2160 -108
33 1798 -1524
34 1778 -1831
35 1608 -1831
36 2037 -1831
~ Si 9;~
37 1438 -1831
51 2420 -895
52 2352 -1109
53 2285 -1324
SECTION AT CHAINAGE
MAT CAT TAI LYTRlNHX-61380
Y=OZ=O
NUM y
9 2495 -105
10 2825 -102
11 2255 -107
32 1764 -1369
33 1989 -1879
34 1791 -1789
35 1621 -1789
36 2050 -1789
37 1451 -1789
51 2420 -895
52 2352 -1109
53 2285 -1324
1-------------------------------< CLIENT:
t - - - + - - - + - - - - - - - - - - - - - + - - - - + - - - - + - - - - l CH09AUTLI:
:i: '
~ ~ ~7 1~ t--~-+3-0I00_1_1-+-2-~-.u-bm-m1-oo-~-lllch-nl~-1-d-.,,--------+A-. K---+----+----l HRB
SECTION AT CHAINAGE
MAT CAT TAI LY TRlNH" X"58000
NUM Y
7 2600 -330
8 2720 -103
9 2360 -106
10 2960 -100
11 2120 -109
34 1772 -1848
35 1602 -1848
36 2032 -1848
37 1432 -1848
51 2420 -895
52 2352 -1109
53 2285 -1324
0 0 0 0
36 34 36 37
SECTION AT CHAINAGE
MAT CAT TAI LYTRlNH• X=60000
NUM Y
8 2640 -176
9 2440 -106
10 2880 -101
11 2200 -108
33 1878 -1665
34 1783 -1815
35 1613 -1815
36 2042 -1815
37 1443 -1815
51 2420 -895
52 2352 -1109
53 2285 -1324
SECTION AT CHAINAGE
MAT CAT TAI LYTRlNH• X=62000
NUM Y
9 2520 -105
10 2800 -102
11 2280 -107
32 1830 -1467
33 2039 -1649
34 1796 -1774
35 1626 -1774
36 2055 -1774
37 1456 -1774
51 2420 -895
52 2352 -1109
SECTION AT CHAINAGE
MAT CAT TAI LY TRlNHX=58380
Y=OZ•O
NUM y
8 2705 -103
9 2375 -106
10 2945 -101
11 2135 -109
33 1748 -1422
34 1774 -1842
35 1604 -1842
36 2034 -1842
96 g9; g37 1434 -1842
51 2420 -895
52 2352 -1109
53 2285 -1324
SECTION AT CHAINAGE
MAT CAT TAI LYTRlNHX-61000
Y•OZ•O
NUM y
8 2000 -318
9 2480 -105
10 2840 -102
11 2240 -108
33 1958 -1888
34 1788 -1798
35 1618 -1798
36 2047 -1798
37 1448 -1798
51 2420 -895
52 2352 -1109
53 2285 -1324
SECTION AT CHAINAGE
MAT CAT TAI LY TRlNHX=63000
Y•OZ•O
NUM y
9 2560 -191
10 2760 -102
11 2320 -107
32 1936 -1601
33 2115 -2119
34 1803 -1751
35 1633 -1751
36 2062 -1751
37 1463 -1751
51 2420 -895
52 2352 -1109
53 2285 -1324 NOTES:~~~~~~~~~-t:::SS::t:fi!i5+~~~~~~~~~~~~~~~~~~~--,
GHICHO
II
PROJECT IMPLEMENTATION OONSULTANT
lV VAN THIJC HIEN DIJ AN
SYSTRAS.A
- All..DIMENSIONS ARE IN MILLIMETERS.
TAT cA c.AC KICH THllOC THEO fX7N VI MM.
J~[J;~~~~~i~&JJM'b~~~~czt1!J~J"~~ ~~~MENT CENTER LINE (Z=O)
- FOR GENERAL PIT SCHEME REFER TO DWG. No. PIC-TEC-GST-WVO-J00-18400.S.
-VOi BO "!Rl PITTONG THe, XEM BAN ~ SO PIC-TEC-GST-WVQ,I00-18400-a.
-,f.,.OR TEl!IDON ELEVA
1
TION AND PLAN VIEW LAYOUT REFER TO DWG. No. PIC-TEC-GST-WVO-J00-18401-B TO PIC-TEC-GST-WVO-J00-18407-B.
- vc ~TflllNGVA BO TR M~TBANGcAPXEM BAN~SO PIC-TEC-GST-WVQ.JOl).18401-B £li;N PIC-TEC-GST-WVQ.JOl).18407-8.
- FOR PRESTRESSING DETAIL AND SEQUENCES REFER TO DWG. No. PIC-TEC-GST-WVO-J00-18408.S.
ve CHI li~T VA TRINH Tl,I' lJ'NG SuAT TRllO'C XEM BAN VE so PIC-TEC-GST-WVQ.JOl).18400-8.
FILENMIEITtNBANvE:
DESIGNED BYTlll"1~ : FORIMTIKl() BANv£:
A. K A1
STATUS lT1NH~:
Technical Design
DAlENGAY:
31/01110
PRO.ECTOlfm: HANOI PILOTUGKT METRO LINE Sadlon Nhon- Hanoi RalwaySlatlon
TimN EllJOt.lG sAT00 THI THIElltMTP HANOi Eloftl Nh&i-Ge H~ NOi
TITLEl'ltNBAN1£: NHUE RIVER CROSSING
WQ'T SONG NHUI;:
~ ~ ~ 1C 251D8110 U 1lld A. K
Ii; ., 1il t--
1
"'"
9
--+'2""3/08/1==0-+-'U=POA=JED=-----------+A=.K"'----F-'="-+=="---l HANOI METROPOLITAN RAILTRANSPORT PROJECT BOARD
~ It 1A 31/01/10 Fir.t - - A. K BAN DI/ANfllJONG llATflO THI~NQI
CHECl<EDBYsoAT : n.~•-.-.i"""""""_""_,,_,.,._ __,
G. Mauris nwholoor in port<r.-forln!'P'-wlhoo.llhoprior-
1-----,,...--..,.......,,.....-1 permiHionofHRB.
DECK - PT - CROSS SECTIONS - 9 / 10
BAN M.!<T cAU - PT - M.!<T cAT - 9 / 10
>- c ~ REVISION DATE OESCRIP'TlON - l ' f il1El:RJJl'f
~ ~ i SCIASOI NGAY NQI OlolG 80'AOOI !Elt IQIJ
CHIEFDESIGNERCHO ttila,I THI~Kt: Mn ....,. "'°""°"""-w"'"".....,"""""""""''"°'...,,...,
P. Arnaud .... ~m1-o..,..,ID'llt'*"*..,""'"""·
PROJECT OIRECTORIGIAM!lOcIll./AA:
Alain B6chereau
DRAWINGNO. BANv£SO :
PIC-TEC-GST-WVO-J04-18418-B 2A
SECTION AT CHAINAGE
M~T CAT TAI LY TRINHx~Mooo
Y=OZ=O
NUM y
9 2600 -332
10 2720 -103
11 2360 -106
32 2042 -1617
33 2199 -1557
34 1811 -1727
35 1641 -1727
36 2070 -1727
37 1471 -1727
51 2420 -895
52 2352 -1109
53 2285 -1324
SECTION AT CHAINAGE
M~T CAT TAI LY TRINHx~eeooo
Y=OZ=O
00 0
NUM y
10 2640 -174
11 2440 -106
31 1936 -1549
32 2140 -1540
33 2258 -1871
34 1820 -1698
35 1650 -1698
36 2079 -1698
37 1480 -1698
51 2420 -895
52 2352 -1109
53 2285 -1324
SECTION AT CHAINAGE
M~T CAT TAI LY TRINHx~eeooo
Y=OZ=O
11
0
NUM y
11 2560 -193
31 1957 -1565
32 2143 -1505
33 2258 -1675
34 1827 -1875
35 1657 -1675
36 2087 -1675
37 1487 -1675
51 2420 -895
52 2352 -1109
53 2285 -1324
1------------------------------< CUENT:
t - - - + - - - + - - - - - - - - - - - - - + - - - + - - - - + - - - - l CH09AUTLI:
:i: '
~ ~ ~7 1~ t--~-+3-0I00_1_1-+-2-~-.u-bm-m1-oo-~-lllch-nl~-1-d-.,,-------+A-. K--+----+----l HRB
SECTION AT CHAINAGE
M~T CAT TAI LY TRINHx~l!4380
NUM y
10 2705 -103
11 2375 -106
31 1786 -1302
32 2082 -1812
33 2229 -1551
34 1812 -1722
35 1642 -1722
36 2072 -1722
37 1472 -1722
51 2420 -895
52 2352 -1109
53 2285 -1324
SECTION AT CHAINAGE
M~T CAT TAI LYTRlNHX-67000
NUM y
10 2600 -316
11 2480 -105
31 1954 -1574
32 2140 -1514
33 2258 -1884
34 1824 -1884
35 1654 -1684
36 2084 -1684
37 1484 -1684
51 2420 -895
52 2352 -1109
53 2285 -1324
SECTION AT CHAINAGE
M~T CAT TAI LYTRlNHx~70000
NUM
11
31
32
33
34
35
36
37
51
52
53
y
2600 -335
1958 -1560
2144 -1500
2258 -1670
1829 -1870
1659 -1870
2086 -1670
1489 -1670
2420 -895
2352 -1109
2285 -1324
II
PROJECT IMPLEMENTATION OONSULTANT
lV VAN THIJC HIEN DIJ AN
SYSTRAS.A
~ ~ ~ 1C 251D8110 U 1lld A.K
Ii; ., 1il t--
1
""
9
--+'2""3/08/1==0-+-'U=PDA=J E D = - - - - - - - - - - - + A =.K"----i='='--+=="---l HANOI METROPOLITAN RAILTRANSPORT PROJECT BOARD
~ It 1A 31/01/10 Fir.t - - A. K BAN DI/ANDUONG llATflO Tlll~NQI
I- c ~ REVISION DATE OESCRIPTlON - l ' f Q1El:RJJl'f
~ ~ i SCIASOI NGAY NQI OlolG 80'AOOI Hilt IQIJ
PROJECT lllRECTORIGIAM!lOcIll./AN:
Alain B6chereau
SECTION AT CHAINAGE
MAT CAT TAI LY TRINH
Y=O~O
" X"65000
d
NUM Y
10 2680 -103
11 2400 -106
31 1846 -1406
32 2127 -1591
33 2256 -1575
34 1815 -1713
35 1645 -1713
36 2074 -1713
37 1475 -1713
51 2420 -895
52 2352 -1109
53 2285 -1324
SECTION AT CHAINAGE
MAT CAT TAI LYTRlNH
Y=O~O
• X"68000
0
NUM Y
11 2520 -105
31 1955 -1569
32 2141 -1509
33 2258 -1679
34 1826 -1679
35 1656 -1679
36 2085 -1679
37 1486 -1679
51 2420 -895
52 2352 -1109
53 2285 -1324
SECTION AT CHAINAGE
MAT CAT TAI LY TRlNH
Y=O~O
• x~11 000
NUM y
31 1958 -1560
32 2144 -1500
33 2258 -1670
34 1829 -1670
35 1659 -1670
38 2088 -1870
37 1489 -1670
51 2420 -895
52 2352 -1109
53 2285 -1324
NOTE~:---------------------------------------~
GHICHU
- ALL DIMENSIONS ARE IN MILLIMETERS.
TAT cAcAc KlCH THLrOC THEO f>O'N VI MM.
- THE TENDON LAYOl/T IS SYMMETRICAL TO THE SEGMENT CENTER LINE (Z=O)
M~T BANG GAP LA 001 Xl1NG VOi El/ONG TAM PHANOOAN (Z=O)
- FOR GENERAL PIT SCHEME REFER TO DWG. No. PIC-TEC~ST-WVO-J00-18400-B.
- VOi B0TR[ PIT TONG THi;, XEM BAN VI; SO PIC.TECGST·WVo-J00.1840().B.
- FOR TElIDON_ELE'(.~TION AND PLAN VIEW LAYOUT REFER TO DWG. No. PIC-TEC-GST-WVO-J00-18401.S TO PIC-TEC-GST-WVO-J00-18407-8.
- V£-~T EllNG VA 00 T1<1 ~T BANG cAP XEM BAN vE:SO PIC.TEC.GST-WVQ.J00.18401-B EION PIC.TEC-GST-WVO-J00.18407-8.
- FOR PRESTRESSING DETAIL AND SEQUENCES REFER TO DWG. No. PIC-TEC-GST-WVO-J00-18408-B.
V£ CHI Ti~ VA lRINH lV IJNG SUAT TRllO'c XEM BAN~SO PIC-TEC-GST-WVQ.J00.18408-B.
FILENMIEITtNBANvE:
DESIGNED BYTlll"1~ : FORIMTIKl() BANv£:
A. K A1
STATUS lT1NH~:
Technical Design
DAlENGAY:
31/01110
CHECl<EDBYsoAT : n.~•-'11"""""""_""_,·_,.,._ __,
G. Mauris n wholoor in portor.-forln!'P'-wlhoo.llhoprior-
1-----,,...--..,.......,...--1 permiHionofHRB.
CHIEFDESIGNERCHOttila,I THI~Kt: Mn ....,. "'°""°"""-w"'""....,"""""""""''"°'...,,...,P.Arnaud .... ~ma-o..,..,ID'llt'*"*..,""' """·
PRO.ECTOlfm: HANOI PILOTUGKT METRO LINE Sadlon Nhon- Hanoi RalwaySlatlon
TimN EllJOt.lG sAT00 THI THIElltMTP HANOi Eoftl Nh&i-Ge H~ NOi
TITLEl'ltNBAN1£: NHUE RIVER CROSSING
WQ'T SONG NHUI;:
DECK - PT - CROSS SECTIONS - 10 / 10
BAN M.!<T cAU - PT - M.!<T cAT - 10 / 10
DRAWINGNO. BANv£SO :
PIC-TEC-GST-WVO-J04-18419-B 2A
81 81
.... ~g
a>
NN
LO r--~ N
~~~-
::: S! MO LO
N~ ....II II II II
~gig~
x >- x >-
Ou ~
mu o.
~
0 CD enu a:= o.
~~,~! :ll a>
~~I~~- «) r:::
- N (")
1~
/1
I
c=======---- JD
~ ·- ~
" I l l I I•
Q1 1 ~ 011
---;;
0I 11
- rll'
- 62,_
~
<11 I
~ ES1 S1 SA9' SAB' SA7' SA6' SAS' SA4' SA3'
~~~~~'---- ..__ SA2' SA1'
~·---·---·--- -~ _____.______·---·---·---· ------·-'------·---·-----~----·-- - - - - - - -~·- ~ · - - - - - - · - - - · - ....___·--- · - - -· -'----- · - - - . - - - - - - - · - -1---· · -
if~ if~_...,
t~ HALF BOTTOM PLAN VIEW
-w-l>---1
~cc
~
1~ MOT NO'A MAT BANG £JAY 1:::: co
• SCALE : 1/50
..... ..., 82
D
END OF CABLE 8w 8l:l
EIAucAP 0 a> TYL!;: 1/50 0--1
0 0
81
(SHOWING FUTURE ADDITIONAL TENDONS AT LATERAL SPAN:-81 ONLY FOR CLARITY)
81
0
START OF CURVE (CHll RA cAP UNG SUATTRl10c 80 SUNGTRONG TU'O'NG LAI T~I NHIP B~N:.a1 CHIEl~ LAM RO)
EIAu Elu'O'NG CONG
0
END OF CURVE
CUOI E>llbNG CONG
LEGEND
~u
81 81
PASSIVE ANCHORAGE .,... CD ""r--NEO BIElONG CD I'-
"'""
~I;(:; ~ ACTIVE ANCHORAGE
~..,. ~..,.
nd N-
.... NEC CHO E)()NG II 11
a.. XN )( N
<" u.<oN
~5~~
~
0
~
og2 "'
(/)~~
:ll Cl)uO: ii:
(")
~~ ~ - N
~~!!:!~I- a..
IL
I
~ ~ -------=====61 ES1 SA9' SAB' SA7' SA6' SAS' SA4' SA3' 62 lPl'" i I;;
......
~
~
PS~r h ~
a
SA2' SA1'
I
r r ~
~Ir '--. Ir-- I l,
~N )(
II II
:: ct
liilo
61 N )( N )(
i;nniix .II II II II
N ><
~I
......
HALF LOGITUDINAL ELEVATION ~~ .f,.W .f,.
~~ ct~
g, ~ ..... --i 0
a>~ CJ>
"'o
NO'A MATfJllNG DOC
CDW fl :::! a> --1
CD
81 81
QI
81 82
SCALE: 1/50 62
Ti'LI~: 1150
I NOTE:
GHICHU:
-ALL DIMENSIONS ARE IN MILLIMETERS.
TAT cA cAC KlCH THl/O"cTHEO OONVI MM.
~
~ CUENT:
II
PROJECT IMPLEMENTATION CONSULTANT FILE NMIEITtNBANvE: SCALElTfLf:: STATUS lT1NH~: PRO.ECTIDlfAN : HANOI PILOTUGKT METRO LINE Sadlon Nhon-Hanol RalwaySlatlon
i ' CH09AUTLI: TU VAN THIJCHIEN DIJAN PIC-TEC-OBT-WVOJ04..1IMID8_2AIMO - Technical Design
TimN EllJOt.lG s.l.TElO THI THIElltMTP HANOi Eoftl Nh&i· Ge H~ NOi!';
SYSTRAS.A
~
n
HRB
DESIGNED BYTlll"1~ : FORIMTIKf() BANv£: DAlENGAY: TITLEI'ltN BAN v£: NHUE RIVER CROSSING
If~ A. K A1 31/01110 WQ'T SONG NHUI;:7
ii!~ 2A 30IGl/11 2nd .subml111lon ofl&dinlcaldea9'1 A.K 13. Mourto ... Arnaud
! ~ i
1C 25108110 Uodatlld A.K 13. Mourto ... Arnaud CHECl<ED BYsoAT : DECK - PT - FUTURE ADDITIONAL PT - 1 / 318 23/08/10 UPDATED A.K l:l. Mourio ...Arnaud HANOIMETROPOLITAN RAILTRANSPORT PROJECT BOARD
ThLldlawl1111rru11tncti......-mi..t,~i:r~~
!i! t G. Mauris ii whole or in part orUlldfor anr p.,.,._wthcU lh9pricrwrillln
~ 1A 31/01/10 Fir.t-. A.K l:l. Mourio P.Amaud BAN DI/ANElOONG llATflO THI ~ NQI permiHionofHRS. BAN M.!<T cAU - PT · PT BO SUNG TVO'NG LAI - 1 / 3
I~ PROJECTDIRECTORIGIAM!lOcDI./AN: CHIEFDESIGl'ERICHOttila,I THI~ Kt : Mn ...........O..,._Ol) ................. ... ..,.,,mOI........ DRAWINGNO. BANvESO:
I2A~ n REVISION DATE OESCRIP'TlON -rr il1El:RJJrr CIEFCFDEJDi
....~ ...-o..,..,ID-.lt'*"*'*'""'"""·IL
SCIASOI NGAY NQIOlolG 80'A001 11Elt IQIJ C11lNIGTIEIE Alain B6chereau P. Amaud PIC-TEC-GST-WVO-J04-18450-B
62
N
f:lo
LO
coo
.... ~~
~81~~
II II
>< >-
~~
~
Cl)(..) 0:: 11. N
~ ~~~I~~
alCl
<"l
I
I _._,,
I nl l!T nT / / 11 11
61 /
-
,_
ID ID
I
--
ID ~ I~ IP... h 11
ID~
1jJ
62'"' I
I-
-;! -
~1----~~-------
SA1 SA2 SA3 SAA '-'--- SA5 SA6 SA7 SA8 SA9
--·---·-~ - · · - - - - - - - - - - - - - - - - - - - · - · - - - · - - - · - ' - - - - ~ ·---· ~·--- - - - - - - - - - - - - - - - · - ·---·---·-~·--- · --- ·
~:::: i1'>.::-c.. -c....... El ig HALF BOTTOM PLAN VIEW~ iO I)~
°' i1'::;: MOT NliA MAT BANG fJAY62 61
....., UI
S!:l SCALE : 1/50
• Cl rtll~: 1/5 0
LEGEND
....
~o 62
(SHOWING FUTURE ADDITIONAL TENDONS AT MID SPAN:-62 ONLY FOR CLARITY)
D
END OF CABLE PASSIVE ANCHORAGE
(CHI RA cN> llNG suATTRL!Oc eO SUNGTRONG11/0NGLAI Tl!ol NHIP GIO'A:~2 CHIe~ LAM RO)
ElAuc:AP NEOBIElQNG
---*® ACTIVE ANCHORAGE
0
START OF CURVE NEOCHl)f>QNG
ElAu f>OONG CONG
0
END OF CURVE
CUOI ElLJONG CONG
61 62 62
~I
in in 0 Cl
~fil ~~
CD <"l
l!! ...
r11 '! r. ii
in~
II 11
)(N )(N )( N
u..~oN -
~
II>
OuZa: N
~ ~Cl) (.} 0:: al
~~!!!~
Cl
<"l
~ll..
,----
62
pc
I~ ~ '"ll'::i 61
~ ( ~ SA3 SAA SA5 SA6
I
SA7 SAS SA9 S3
SA1 SA2 ...! c----___ r:;-----__ c;---__ s----_PS
~
,....___ ....h
~
) I ------, ,J --, ,, l r'
r;;i::;: ';;' x NX
HALF LOGITUDINAL ELEVATIONN )( J,,.c.> .j,.
~I
N >< II II
};,& .......... 0 g,& ~ gJ
NO'A MAT f)lJNG DOCfl:::! en~ CD ...... ig j{';!!l
"'
Cl .... 1)0
UI !>
QO
61 62
I) SCALE : 1150
62 61
62 rtll1.: 1/50
[ NOTE:
GHICHO:
~
- ALL DIMENSIONS ARE IN MILLIMETERS.1
TATcAc:AC KfCH THL10cTHEOElONVI MM.
~
'
CUENT:
II
PROJECT IMPLEMENTATIONCONSULTANT FILENMIEITtNBANvE: SCALElTfLf:: STATUS lT1NH ~ : PRO.ECTDlfAN : HANOI PILOTUGKT METRO LINE Sadlon Nhon-Hanol RalwaySlatlon
'I' CH09AUTLI: lVVAN THIJCHIENDIJAN Technical Design
i !';
P IC-TEC-OBT-WVOJ04..111U1-B_2AIM'O - llmNEllJOt.lG sAT00 THITHIElltMTP HANQI Eoftl Nh&i-Ge H~ NOi
n SYSTRAS.A
~ If~ HRB
DESIGNED BYTlll"1~ : FORIMTIKl() BANv£: DAlENGAY: TITLEITtN BAN ~ : NHUE RIVER CROSSING
7
ii! ~ 2A 30IGl/11 2nd .subml111lon ofl&dinlcaldea9'1 A.K ll. Mourto P. Amaud A. K A1 31/01110 WQ'T SONG NHUI;:
! ~ i
1C 25108110 Uodatlld A.K ll. Mourto P. Amaud CHECl<EDBYsoAT:
!i! t 18 23/08/10 UPDATED A.K [l. Mourio P.Amaud HANOI METROPOLITAN RAIL TRANSPORT PROJECT BOARD
ThLldlawl1111 rru11tnct i. .....-mi..t,~ i:r~ ~ DECK - PT - FUTURE ADDITIONAL PT - 2 / 3
G. Mauris ii whole or in part orUlldfor anr p.,.,._wthcU lh9pricrwrillln
~ 1A 31/01/10 Fir.t-. A.K P. Mourio P.Amaud BAN DI/AN flOONG llATflO THI ~ NQI permiHionofHRS. BAN M.!<T cAU - PT - PT BO SUNG TVO'NG LAI - 2 / 3
I ~ PROJECTDIRECTORIGIAM!lOcDI./AN: CHIEFDESIGNERI CHONHla,I THI~ Kt :
~ n REVISION DATE OESCRIP'TlON - l'f Q1El:RJJl'f CIEFCFDEJDi
Mn ..... .....O..,._ oo)..,...................,.,,mOI........ DRAWINGNO.BAN~SO :
I2AIL
SCIASOI NGAY NQIl:llMG 80'A001 11Elt IQIJ C11lN11i1111Elt Alain B6chereau P. Amaud ....~ ...-o..,..,ID'llt'*"*'*'""'"""· PIC-TEC-GST-WVO-J04-18451-B
SECTION AT CHAINAGE
MAT CAT TAI LY TRlNH" X"480
NUM Y
61 1344
SECTION AT CHAINAGE
MAT CAT TAI LYTRlNH" X=37198
NUM Y
61 1699
62 1307
SECTION AT CHAINAGE
MAT CAT T1!7
lJ'TRlNH
NUM Y
62 1000
62
0
1------------------------------< CLIENT:
t---+---+-------------+---+----+----l CH09AUTLI:
HRB
SECTION AT CHAINAGE
MAT CAT TAI LY TRlNH• x~11500
NUM Y
61 1001
61
0
Y=4JZ=O
SECTION AT CHAINAGE
MAT CAT TAI LYTRlNH" X"23500
NUM Y
61 1003
61
0
SECTION AT CHAINAGE
MAT CAT T1JJJ' TRlNH
SECTION AT CHAINAGE
MAT CAT TAI LY TRlNH• X=53500
NUM Y
61 1832
62 1258
II
PROJECT IMPLEMENTATION OONSULTANT
lV VAN THIJC HIEN DIJ AN
SYSTRAS.A
PROJECTOIRECTORIGIAM!lOcIll./AN:
Alain B6chereau
NUM Y
62 1003
62
0
NOTES:~--------------------------------------~
GHICHU
• AU. DIMENSIONS ARE IN MILLIMETERS.
TA'T CACAC l<ICH THl!O'tTHEO EJON VI MM.
·THETENDON LAYOUT IS SYMMETRICAL TO THE SEGMENT CENTER LINE (Z=O)
M.!IT B»IG CAP i..AEOI Xl!NG VOi Ell/ONG TAM PHAN El°"'N (Z~D)
• FOR GEN
1
ERAL PIT SCHEME REFER TO DWG. No. PIC·TEC-GST·WVO.JOD-18400-8.
-VOi eO-lR PtrrONG THI:, XEM 81N VE so PIC-TEC-GST-WVO-J00-184DO-a.
- FOR TEl')IDON ELEVATION AND PLAN VIEW LAYOUT REFER TO DWG. No. PIC-TEc.GST-WVO-JD0-18401-B TOPIC-TEc.GST-WVO-JD0-18407-B.
-v£ M.!ITEll/NG VA BO TRI M~T BANG GAPXEM BAN v£ 50 PIC-TEC-GST-WVo-10().18401-B EJi::N PIC-TEC-GST-WV0-10().18407.a.
- FOR PRESTRESSING DETAIL AND SEQUENCES REFER TO DWG. No. PIC-TEC-GST-WVO-J0()..18408-8.
v£ CHI TilOTVATRlNH TV llNG SuAT TRlfOC XEM BAN v£SO PIC-TEC-GST-WVO-J00-18408-8.
FILENMIEITtNBANvE:
DESIGNED BYTlll"1~ : FORIMTIKl() BANv£:
A. K A1
STATUS lT1NH~:
Technical Design
DAlEINGAY:
31/01110
CHECl<EOBYsoAT : n.~•-'11"""""""_""_,·_,.,._ __,G. Mauris nwhol1or in portot.-foranyp,_w111oo.1111opr1or-
1-----,,....--..,.......,,......i permiHionofHRB.
CHIEFDESIGNERCHO NHla,I THI~Kt: Mn .. n0y "'°""°"""-w"'"".....,"""""""""'rnOI,.....,
P.Arnaud .... ~ma-o..,..,ID'llt'*"*'*'""'"""·
PROJECTDlfAN : HANOI PILOTUGKT METRO LINE Sadlon Nhon- Hanoi RalwaySlatlon
TimN EllJOt.lG sAT00 THI THIElltMTP HANOi Eoftl Nh&i-Ge H~ NOi
TITLEl'ltNBANvE: NHUE RIVER CROSSING
WQ'T SONG NHUI;:
DECK - PT - FUTURE ADDITIONAL PT - 3 / 3
BAN M.!<T cAU - PT - PT BO SUNG TVO'NG LAI - 3 / 3
DRAWINGNO. BAN~SO :
PIC-TEC-GST-WVO-J04-18452-B 2A
22000
·!5· ·~:~ Y-OZ-i
--·---81~---·
SECTION-1
MAT CAT-1
SCALE: 1/25
l'f' LI; : 1125
61000
1410
1250
- - - ~1C___ - -
95A 95C
- - · - · - - - · - - t - - - - - - - - -
1200
1410
1250
Y=OZ=
--·---81A9 982A ___
SECTION-2
MATCAT-2
SCALE: 1125
l'f' LI; : 1125
1200
1410
1250
· ---·~1c___ ---
91A 92A 92C 91C
--·----e-e-----·--t--- ~- - -
6 940 940 6
NOTES: -----------------------------------------~
- ALL DIMENSIONS ARE IN MILLIMETERS.
- TAT cA KICH THlJO'c TINH THEO tlON VI MILIMET.
- GALVANIZED STEEL STRAIGHT 4T15 DUCTS TO BE LEFT FOR EMERGENCY PRESTRESSING ADJUSTMENT OF POST
- ONG cAPTH~P THANG ~ K~M 4T15 tll10'C tl~ ~I PHl,JC Vl,J tll ~u CHINH DI/ ONG UJC KHAN cAP Ho,;cUJC K~O SAU 1RONG
TENSIONING FORCE IN CASE OFA TOO LOW ACTUAL TRANSMISSION COEFFICIENT. DUCT NO. 81A, 81C, 82A, 82C, 91A, 91C,
1Rl10'NG HQ'P HE SO TR~N THl/C ~RAT THAP. MANG s6 81A, 81C, 82A, 82C, 91A, 91C, 92A, 92C, 818, 810, 828, 820, 95A,
92A, 92C, 81 B, 81D, 82B, 82D, ~ 95C, 95B, 95D.
95C, 958, 950.
- EMERGENCY DUCTS NOT USED FOR ADJUSTMENT SHALL BE GROUTED AT THE SAME TIME AS OTHER DUCTS OF THE SPAN.
~ -cAc ONG KHAN cAP KHONG tllJO'C SCI' Dl,JNG tl~ tll~U CHINH PHAI tlU'QC PHUN VO'A CUNG LOC VO'I cAc ONG KHAC COA NHIP
~
'~
l!;
n~ ~ ~
7
i ~
! ! ti
~ ~~
~ ',!!
~ n0..
t----+---t----------------+----+-----t>------i CLIENT:
1----+---1----------------+----+-----11-------1 CHOEIAUnr:
HRB
2A 3<Wl/11 2nd •ubmi111ion ofledinicaldllllign
1----+---1----------------+-A.-K---+----+----i HANOI METROPOLITAN RAIL TRANSPORT PROJECT BOARD
1A 2Mllltl0 Fim-.
REVISION DATE
SC/ADO! NGA.Y
DESCRIPTION
NQI CUNG SO'A DOI
A. K BAN DI/ANDUONG sATflO lHIHAN(ll
DelllNEDl!Y
1111trK£
IH!llEDl!Y
1111.r
II
PROJECT IMPLEMENTATION CONSULTANT
TV VJN THVC Hl~N DIJ AN
SYSTRAS.A
PROJECT DIRECTORIGIAMElOcDI/AN :
Alain B'9chereau
I
I
I
I
I
I
I
I
I
I
I
I
I
I
91A 1I
I
I
I
I
I
I
I
I
I
I
I
I
I
I
I
I
I
I
I
I
I
I
I
I
1192A
I
I
I
I
I
I
I
I
I
I
940 940
92C I
I
I
I
I
I
I
I
I
I
I
I
I
I
I
1191C
I
I
I
I
I
I
I
I
I
I
PLAN VIEW TOP CABLE
MAT BANG CAP DAY' SCALE : 1125
l'f' LI; : 1125
1250 1250
I 11 I
I II I
I II I
I II I
I 11 I
I 11 I
I II I
I II I
I II I
I 11 I
I 11 I
I II I
I II I I
I II I I
81A1 I 11 82A 82C I 81C
II
II
I I
I I
I I
II
II
I I
I I
I I
ALENMIEITtN BAN'IE:
DESIGNED BYTll1£r~ :
A. K
11 I I
11 I I
II I I
II I I
II I I
11 I I
11 I I
II I I
II I I
II I I 11
PLAN VIEwlroP CABLE
MAT BANG CAP" SCALE : 1125
l'f' LE : 1125
FORIMTI~BAN v£ :
A1
STATUS lT1NH T~:
Technical Deeign
DATEI NGAY:
25/08110
ONGOOQC ~ ~ TRLn'.7c KHI ElllC
FOR BOTTOM EMERGENCY DUCTS(GROllTING).
CHO cN; ONG KHAN cAPCOOi (PHUN WA)
PRO.ECTI DI/AN : HANOI PILOTUGKT METROLINE Sadlon Nhon- Hrml RalwaySlllllan
ru~N WONG sAT00 THI THIDlt:MTPHANOi Eo911 Nh&i· Ge H~ NOi
TITlfll'tNBANv£: NHUE RIVER CROSSING
DECK - PT - EMERGENCY PT
DRA'MNGNO.BAN~ SO :
PIC-TEC-GST-WVO-J04-18460-B 2A

Set 3 18 h

  • 1.
    ỦY BAN NHÂNDÂN THÀNH PHỐ HÀ NỘI - HANOI PEOPLES COMMITTEE BAN DỰ ÁN ĐƯỜNG SẮT ĐÔ THỊ HÀ NỘI - HANOI METROPOLITAN RAIL TRANSPORT PROJECT BOARD (HRB) BẢN VẼ THIẾT KẾ KỸ THUẬT TECHNICAL DESIGN DRAWINGS DỰ ÁN: TUYẾN ĐƯỜNG SẮT ĐÔ THỊ THÍ ĐIỂM THÀNH PHỐ HÀ NỘI, ĐOẠN NHỔN – GA HÀ NỘI PROJECT: HANOI PILOT LIGHT METRO LINE, Section Nhon - Hanoi Railway Station GÓI THẦU: ĐOẠN ĐI TRÊN CAO - Tuyến PACKAGE: ELEVATED SECTION - Line MÃ SỐ GÓI THẦU – PACKAGE NUMBER: HPLMLP/CP-01 HẠNG MỤC 3: Cầu vượt Sông Nhuệ ITEM: SET 3 – Nhue River Bridge Địa điểm: Huyện Từ Liêm, Quận Cầu Giấy, Quận Ba Đình, Hà Nội Location: Tu Liem, Cau Giay, Ba Dinh Districts, Ha Noi PIC-TEC-TRE-WVO-L20-00185-B-3A Tháng 04/2012 - April 2012
  • 2.
    ỦY BAN NHÂNDÂN THÀNH PHỐ HÀ NỘI - HANOI PEOPLES COMMITTEE BAN DỰ ÁN ĐƯỜNG SẮT ĐÔ THỊ HÀ NỘI - HANOI METROPOLITAN RAIL TRANSPORT PROJECT BOARD (HRB) BẢN VẼ THIẾT KẾ KỸ THUẬT TECHNICAL DESIGN DRAWINGS DỰ ÁN: TUYẾN ĐƯỜNG SẮT ĐÔ THỊ THÍ ĐIỂM THÀNH PHỐ HÀ NỘI, ĐOẠN NHỔN – GA HÀ NỘI PROJECT: HANOI PILOT LIGHT METRO LINE, Section Nhon - Hanoi Railway Station GÓI THẦU: ĐOẠN ĐI TRÊN CAO - Tuyến PACKAGE: ELEVATED SECTION - Line MÃ SỐ GÓI THẦU – PACKAGE NUMBER: HPLMLP/CP-01 HẠNG MỤC 3: Cầu vượt Sông Nhuệ ITEM: SET 3 – Nhue River Bridge Địa điểm: Huyện Từ Liêm, Quận Cầu Giấy, Quận Ba Đình, Hà Nội Location: Tu Liem, Cau Giay, Ba Dinh Districts, Ha Noi BAN DỰ ÁN ĐƯỜNG SẮT ĐÔ THỊ HÀ NỘI HANOI METROPOLITAN RAIL TRANSPORT PROJECT BOARD TƯ VẤN THỰC HIỆN DỰ ÁN PROJECT IMPLEMENTATION CONSULTANT Tháng 04/2012 - April 2012
  • 3.
    No / STTDrawing Title 1 Drawing Title 2 Tiêu 1 c a b n v Tiêu 2 c a b n v Reference No / S tham chi u 1 ELEVATED SECTION - LINE - SET 3 LIST OF DRAWINGS - SHEET 1/2 O N TRÊN CAO - T P 3 DANH SÁCH CÁC B N V - T 1/2 PIC-TEC-GNS-WOO-L00-92007-B-3A 2 ELEVATED SECTION - LINE - SET 3 LIST OF DRAWINGS - SHEET 2/2 O N TRÊN CAO - T P 3 DANH SÁCH CÁC B N V - T 2/2 PIC-TEC-GNS-WOO-L00-92008-B-3A NHUERIVER CROSSING/ VƯ T SÔNGNHU 3 NHUE RIVER CROSSING GAD - 1 / 3 VƯ T SÔNGNHU GAD - 1/3 PIC-TEC-GAD-WVO-J04-18001-B-2A 4 NHUE RIVER CROSSING GAD - 2 / 3 VƯ T SÔNGNHU GAD - 2/3 PIC-TEC-GAD-WVO-J04-18002-B-2A 5 NHUE RIVER CROSSING GAD - 3 / 3 VƯ T SÔNGNHU GAD - 3/3 PIC-TEC-GAD-WVO-J04-18003-B-2A 6 NHUE RIVER CROSSING GAD - SEGMENT ARRANGEMENT - 1 / 3 VƯ T SÔNGNHU GAD - B TRÍ O N 1/3 PIC-TEC-GAD-WVO-J04-18007-B-2A 7 NHUE RIVER CROSSING GAD - SEGMENT ARRANGEMENT - 2 / 3 VƯ T SÔNGNHU GAD - B TRÍ O N 2/3 PIC-TEC-GAD-WVO-J04-18008-B-2A 8 NHUE RIVER CROSSING GAD - SEGMENT ARRANGEMENT - 3 / 3 VƯ T SÔNGNHU GAD - B TRÍ O N 3/3 PIC-TEC-GAD-WVO-J04-18009-B-2A 9 NHUE RIVER CROSSING CONST METHOD - 1 / 3 VƯ T SÔNGNHU PHƯƠNGPHÁP THI CÔNG- 1/3 PIC-TEC-GCM-WVO-J04-18011-B-3A 10 NHUE RIVER CROSSING CONST METHOD - 2 / 3 VƯ T SÔNGNHU PHƯƠNGPHÁP THI CÔNG- 2/3 PIC-TEC-GCM-WVO-J04-18012-B-3A 11 NHUE RIVER CROSSING CONST METHOD - 3 / 3 VƯ T SÔNGNHU PHƯƠNGPHÁP THI CÔNG- 3/3 PIC-TEC-GCM-WVO-J04-18013-B-3A 12 NHUE RIVER CROSSING SUBSTRUCTURES - P151-P154 - CONC OUT VƯ T SÔNGNHU K T C U T NGDƯ I - P151-P154 - K T C U BÊ TÔNG PIC-TEC-GDO-WVO-J04-18100-B-3A 13 NHUE RIVER CROSSING SUBSTRUCTURES - P152-P153 - CONC OUT - 1 / 2 VƯ T SÔNGNHU K T C U T NGDƯ I - P152-P153 - K T C U BÊ TÔNG- 1/2 PIC-TEC-GDO-WVO-J04-18101-B-3A 14 NHUE RIVER CROSSING PILES - P151-P154 - REINF VƯ T SÔNGNHU C C - P151 - P154 - C T THÉP PIC-TEC-GRR-WVO-J04-18110-B-3A 15 NHUE RIVER CROSSING PILES - P152-P153 - REINF VƯ T SÔNGNHU C C - P152 - P153 - C T THÉP PIC-TEC-GRR-WVO-J04-18113-B-3A 16 NHUE RIVER CROSSING PILE CAPS - P151-P154 - REINF - PLAN VIEW VƯ T SÔNGNHU MŨ C C - P151 - P154 - C T THÉP - M T B NG PIC-TEC-GRR-WVO-J04-18130-B-3A 17 NHUE RIVER CROSSING PILE CAPS - P151-P154 - REINF - SECTIONS VƯ T SÔNGNHU MŨ C C - P151 - P154 - C T THÉP - M T C T PIC-TEC-GRR-WVO-J04-18131-B-3A 18 NHUE RIVER CROSSING PILE CAPS - P152-P153 - REINF - PLAN VIEW VƯ T SÔNGNHU MŨ C C - P152 - P153 - C T THÉP - M T B NG PIC-TEC-GRR-WVO-J04-18140-B-3A 19 NHUE RIVER CROSSING PILE CAPS - P152-P153 - REINF - SECTIONS VƯ T SÔNGNHU MŨ C C - P152 - P153 - C T THÉP - M T C T PIC-TEC-GRR-WVO-J04-18141-B-3A 20 NHUE RIVER CROSSING VERTICAL SETTINGOUT VƯ T SÔNGNHU B TRÍ TRÊN M T NG PIC-TEC-GAD-WVO-J04-18151-B-2A 21 NHUE RIVER CROSSING ELASTOMERIC BEARING VƯ T SÔNGNHU G I C U CAO SU PIC-TEC-GAD-WVO-J04-18152-B-2A 22 NHUE RIVER CROSSING PIERS - P151 - REINF VƯ T SÔNGNHU TR - P151 - C T THÉP PIC-TEC-GRR-WVO-J04-18210-B-3A 23 NHUE RIVER CROSSING PIERS - P151 - REINF VƯ T SÔNGNHU TR - P151 - C T THÉP PIC-TEC-GRR-WVO-J04-18211-B-3A 24 NHUE RIVER CROSSING PIERS - P151 - REINF - BAR LIST VƯ T SÔNGNHU TR - P151 - C T THÉP - DANH M C C T THÉP PIC-TEC-GRR-WVO-J04-18212-B-3A 25 NHUE RIVER CROSSING PIERS-PIERCAP - P152 - REINF - 1 / 3 VƯ T SÔNGNHU TR - MŨ TR - P152-C T THÉP-1/3 PIC-TEC-GRR-WVO-J04-18220-B-3A 26 NHUE RIVER CROSSING PIERS-PIERCAP - P152 - REINF - 2 / 3 VƯ T SÔNGNHU TR - MŨ TR - P152-C T THÉP-2/3 PIC-TEC-GRR-WVO-J04-18221-B-3A 27 NHUE RIVER CROSSING PIERS-PIERCAP - P152 - REINF - 3 / 3 VƯ T SÔNGNHU TR - MŨ TR - P152-C T THÉP-3/3 PIC-TEC-GRR-WVO-J04-18222-B-3A 28 NHUE RIVER CROSSING PIERS-PIERCAP - P152 - REINF - BAR LIST - 1 / 2 VƯ T SÔNGNHU TR - MŨ TR - P152 - C T THÉP - DANH M C C T THÉP - 1/2 PIC-TEC-GRR-WVO-J04-18223-B-2A 29 NHUE RIVER CROSSING PIERS-PIERCAP - P152 - REINF - BAR LIST - 2 / 2 VƯ T SÔNGNHU TR - MŨ TR - P152 - C T THÉP - DANH M C C T THÉP - 2/2 PIC-TEC-GRR-WVO-J04-18224-B-2A 30 NHUE RIVER CROSSING PIERS-PIERCAP - P153 - REINF - 1 / 3 VƯ T SÔNGNHU TR - MŨ TR - P153-C T THÉP-1/3 PIC-TEC-GRR-WVO-J04-18230-B-3A 31 NHUE RIVER CROSSING PIERS-PIERCAP - P153 - REINF - 2 / 3 VƯ T SÔNGNHU TR - MŨ TR - P153-C T THÉP-2/3 PIC-TEC-GRR-WVO-J04-18231-B-3A 32 NHUE RIVER CROSSING PIERS-PIERCAP - P153 - REINF - 3 / 3 VƯ T SÔNGNHU TR - MŨ TR - P153-C T THÉP-3/3 PIC-TEC-GRR-WVO-J04-18232-B-3A 33 NHUE RIVER CROSSING PIERS-PIERCAP - P153 - REINF - BAR LIST - 1 / 2 VƯ T SÔNGNHU TR - MŨ TR - P153 - C T THÉP - DANH M C C T THÉP - 1/2 PIC-TEC-GRR-WVO-J04-18233-B-2A 34 NHUE RIVER CROSSING PIERS-PIERCAP - P153 - REINF - BAR LIST - 2 / 2 VƯ T SÔNGNHU TR - MŨ TR - P153 - C T THÉP - DANH M C C T THÉP - 2/2 PIC-TEC-GRR-WVO-J04-18234-B-2A 35 NHUE RIVER CROSSING PIERS - P154 - REINF VƯ T SÔNGNHU TR - P154 - C T THÉP PIC-TEC-GRR-WVO-J04-18240-B-3A 36 NHUE RIVER CROSSING PIERS - P154 - REINF VƯ T SÔNGNHU TR - P154 - C T THÉP PIC-TEC-GRR-WVO-J04-18241-B-3A 37 NHUE RIVER CROSSING PIERS - P154 - REINF - BAR LIST VƯ T SÔNGNHU TR - P154 - C T THÉP - DANH M C C T THÉP PIC-TEC-GRR-WVO-J04-18242-B-3A 38 NHUE RIVER CROSSING PIER CAPS - P151 - CONC OUT VƯ T SÔNGNHU MŨ TR - P151 - K T C U BÊ TÔNG PIC-TEC-GDO-WVO-J04-18250-B-2A 39 NHUE RIVER CROSSING PIER CAPS - P151 - DRAINAGE VƯ T SÔNGNHU MŨ TR - P151 - THOÁT NƯ C PIC-TEC-GAD-WVO-J04-18251-B-2A 40 NHUE RIVER CROSSING PIER CAPS - P154 - CONC OUT VƯ T SÔNGNHU MŨ TR - P154 - K T C U BÊ TÔNG PIC-TEC-GDO-WVO-J04-18252-B-2A 41 NHUE RIVER CROSSING PIER CAPS - P154 - DRAINAGE VƯ T SÔNGNHU MŨ TR - P154 - THOÁT NƯ C PIC-TEC-GAD-WVO-J04-18253-B-2A 42 NHUE RIVER CROSSING PIER CAPS - P151-P154 - REINF - 1 / 7 VƯ T SÔNGNHU MŨ TRU - P151 - P154 - C T THÉP - 1/7 PIC-TEC-GRR-WVO-J04-18260-B-3A 43 NHUE RIVER CROSSING PIER CAPS - P151-P154 - REINF - 2 / 7 VƯ T SÔNGNHU MŨ TRU - P151 - P154 - C T THÉP - 2/7 PIC-TEC-GRR-WVO-J04-18261-B-3A 44 NHUE RIVER CROSSING PIER CAPS - P151-P154 - REINF - 3 / 7 VƯ T SÔNGNHU MŨ TRU - P151 - P154 - C T THÉP - 3/7 PIC-TEC-GRR-WVO-J04-18262-B-3A 45 NHUE RIVER CROSSING PIER CAPS - P151-P154 - REINF - 4 / 7 VƯ T SÔNGNHU MŨ TRU - P151 - P154 - C T THÉP - 4/7 PIC-TEC-GRR-WVO-J04-18263-B-3A 46 NHUE RIVER CROSSING PIER CAPS - P151-P154 - REINF - 5 / 7 VƯ T SÔNGNHU MŨ TRU - P151 - P154 - C T THÉP - 5/7 PIC-TEC-GRR-WVO-J04-18264-B-3A 47 NHUE RIVER CROSSING PIER CAPS - P151-P154 - REINF - 6 / 7 VƯ T SÔNGNHU MŨ TRU - P151 - P154 - C T THÉP - 6/7 PIC-TEC-GRR-WVO-J04-18265-B-3A 48 NHUE RIVER CROSSING PIER CAPS - P151-P154 - REINF - 7 / 7 VƯ T SÔNGNHU MŨ TRU - P151 - P154 - C T THÉP - 7/7 PIC-TEC-GRR-WVO-J04-18266-B-3A 49 NHUE RIVER CROSSING DECK - SEGMENTS ES1-ES2 - CONC OUT - 1 / 2 VƯ T SÔNGNHU B N M T C U - PHÂN O N ES1 -ES2 - K T C U BÊ TÔNG- 1/2 PIC-TEC-GDO-WVO-J04-18300-B-2A 50 NHUE RIVER CROSSING DECK - SEGMENTS ES1-ES2 - CONC OUT - 2 / 2 VƯ T SÔNGNHU B N M T C U - PHÂN O N ES1 -ES2 - K T C U BÊ TÔNG- 2/2 PIC-TEC-GDO-WVO-J04-18301-B-2A 51 NHUE RIVER CROSSING DECK - SEGMENTS S1-S3 - CONC OUT VƯ T SÔNGNHU B N M T C U - PHÂN O N S1 -S3 - K T C U BÊ TÔNG PIC-TEC-GDO-WVO-J04-18302-B-2A 52 NHUE RIVER CROSSING DECK - SEGMENTS SA9'-SB9' - CONC OUT VƯ T SÔNGNHU B N M T C U - PHÂN O N SA9'-SB9' - K T C U BÊ TÔNG PIC-TEC-GDO-WVO-J04-18303-B-2A 53 NHUE RIVER CROSSING DECK - SEGMENTS SA8'-SB8' - CONC OUT VƯ T SÔNGNHU B N M T C U - PHÂN O N SA8'-SB8' - K T C U BÊ TÔNG PIC-TEC-GDO-WVO-J04-18304-B-2A 54 NHUE RIVER CROSSING DECK - SEGMENTS SA7'-SB7' - CONC OUT VƯ T SÔNGNHU B N M T C U - PHÂN O N SA7'-SB7' - K T C U BÊ TÔNG PIC-TEC-GDO-WVO-J04-18305-B-2A 55 NHUE RIVER CROSSING DECK - SEGMENTS SA6'-SB6' - CONC OUT VƯ T SÔNGNHU B N M T C U - PHÂN O N SA6'-SB6' - K T C U BÊ TÔNG PIC-TEC-GDO-WVO-J04-18306-B-2A 56 NHUE RIVER CROSSING DECK - SEGMENTS SA5'-SA5-SB5-SB5' - CONC OUT VƯ T SÔNGNHU B N M T C U - PHÂN O N SA5'-SA5-SB5 - SB5'- K T C U BÊ TÔNG PIC-TEC-GDO-WVO-J04-18307-B-2A 57 NHUE RIVER CROSSING DECK - SEGMENTS SA4'-SA4-SB4-SB4' - CONC OUT VƯ T SÔNGNHU B N M T C U - PHÂN O N SA4'-SA4-SB4 - SB4'- K T C U BÊ TÔNG PIC-TEC-GDO-WVO-J04-18308-B-2A 58 NHUE RIVER CROSSING DECK - SEGMENTS SA3'-SA3-SB3-SB3' - CONC OUT VƯ T SÔNGNHU B N M T C U - PHÂN O N SA3'-SA3-SB3- SB3' - K T C U BÊ TÔNG PIC-TEC-GDO-WVO-J04-18309-B-2A 59 NHUE RIVER CROSSING DECK - SEGMENTS SA2'-SA2-SB2-SB2' - CONC OUT VƯ T SÔNGNHU B N M T C U - PHÂN O N SA2'-SA2-SB2 - SB2'- K T C U BÊ TÔNG PIC-TEC-GDO-WVO-J04-18310-B-2A 60 NHUE RIVER CROSSING DECK - SEGMENTS SA1'-SA1-SB1-SB1' - CONC OUT VƯ T SÔNGNHU B N M T C U - PHÂN O N SA1'-SA1-SB1 - SB1'- K T C U BÊ TÔNG PIC-TEC-GDO-WVO-J04-18311-B-2A 61 NHUE RIVER CROSSING DECK - SEGMENT PS1 - CONC OUT - 1 / 2 VƯ T SÔNGNHU B N M T C U - PHÂN O N PS1 - K T C U BÊ TÔNG- 1/2 PIC-TEC-GDO-WVO-J04-18312-B-2A 62 NHUE RIVER CROSSING DECK - SEGMENT PS1 - CONC OUT - 2 / 2 VƯ T SÔNGNHU B N M T C U - PHÂN O N PS1 - K T C U BÊ TÔNG- 2/2 PIC-TEC-GDO-WVO-J04-18313-B-2A 63 NHUE RIVER CROSSING DECK - SEGMENT PS2 - CONC OUT - 1 / 2 VƯ T SÔNGNHU B N M T C U - PHÂN O N PS2 - K T C U BÊ TÔNG- 1/2 PIC-TEC-GDO-WVO-J04-18314-B-2A 64 NHUE RIVER CROSSING DECK - SEGMENT PS2 - CONC OUT - 2 / 2 VƯ T SÔNGNHU B N M T C U - PHÂN O N PS2 - K T C U BÊ TÔNG- 2/2 PIC-TEC-GDO-WVO-J04-18315-B-2A 65 NHUE RIVER CROSSING DECK - SEGMENTS SA6-SB6 - CONC OUT VƯ T SÔNGNHU B N M T C U - PHÂN O N SA6 -SB6 - K T C U BÊ TÔNG PIC-TEC-GDO-WVO-J04-18316-B-2A 66 NHUE RIVER CROSSING DECK - SEGMENTS SA7-SB7 - CONC OUT VƯ T SÔNGNHU B N M T C U - PHÂN O N SA7 -SB7 - K T C U BÊ TÔNG PIC-TEC-GDO-WVO-J04-18317-B-2A 67 NHUE RIVER CROSSING DECK - SEGMENTS SA8-SB8 - CONC OUT VƯ T SÔNGNHU B N M T C U - PHÂN O N SA8 -SB8 - K T C U BÊ TÔNG PIC-TEC-GDO-WVO-J04-18318-B-2A 68 NHUE RIVER CROSSING DECK - SEGMENTS SA9-SB9 - CONC OUT VƯ T SÔNGNHU B N M T C U - PHÂN O N SA9 -SB9 - K T C U BÊ TÔNG PIC-TEC-GDO-WVO-J04-18319-B-2A 69 NHUE RIVER CROSSING DECK - BLISTER TYPE 1-2-3-5-6 - CONC OUT VƯ T SÔNGNHU B N M T C U - BLISTER TYPE 1-2-3-5-6 - K T C U BÊ TÔNG PIC-TEC-GDO-WVO-J04-18330-B-2A 70 NHUE RIVER CROSSING DECK - BLISTER TYPE 4 - CONC OUT VƯ T SÔNGNHU B N M T C U - BLISTER TYPE 4 - K T C U BÊ TÔNG PIC-TEC-GDO-WVO-J04-18332-B-2A 71 NHUE RIVER CROSSING DECK - DEVIATOR TYPE 1 - CONC OUT VƯ T SÔNGNHU B N M T C U - LO I B CHUY N HƯ NG1 - K T C U BÊ TÔNG PIC-TEC-GDO-WVO-J04-18350-B-2A 72 NHUE RIVER CROSSING DECK - BLISTER TYPE 7 - CONC OUT VƯ T SÔNGNHU B N M T C U - BLISTER TYPE 7 - K T C U BÊ TÔNG PIC-TEC-GDO-WVO-J04-18355-B-2A 73 NHUE RIVER CROSSING DECK - PT - READYRECKONER VƯ T SÔNGNHU B N M T C U - PT - B NGTÍNH S N PIC-TEC-GST-WVO-J04-18400-B-2A 74 NHUE RIVER CROSSING DECK - PT - PLAN VIEW & ELEVATION - 1 / 7 VƯ T SÔNGNHU B N M T C U - PT - M T B NG& M T NG - 1/7 PIC-TEC-GST-WVO-J04-18401-B-2A 75 NHUE RIVER CROSSING DECK - PT - PLAN VIEW & ELEVATION - 2 / 7 VƯ T SÔNGNHU B N M T C U - PT - M T B NG& M T NG - 2/7 PIC-TEC-GST-WVO-J04-18402-B-2A 76 NHUE RIVER CROSSING DECK - PT - PLAN VIEW & ELEVATION - 3 / 7 VƯ T SÔNGNHU B N M T C U - PT - M T B NG& M T NG - 3/7 PIC-TEC-GST-WVO-J04-18403-B-2A 77 NHUE RIVER CROSSING DECK - PT - PLAN VIEW & ELEVATION - 4 / 7 VƯ T SÔNGNHU B N M T C U - PT - M T B NG& M T NG - 4/7 PIC-TEC-GST-WVO-J04-18404-B-2A 78 NHUE RIVER CROSSING DECK - PT - PLAN VIEW & ELEVATION - 5 / 7 VƯ T SÔNGNHU B N M T C U - PT - M T B NG& M T NG - 5/7 PIC-TEC-GST-WVO-J04-18405-B-2A 79 NHUE RIVER CROSSING DECK - PT - PLAN VIEW & ELEVATION - 6 / 7 VƯ T SÔNGNHU B N M T C U - PT - M T B NG& M T NG - 6/7 PIC-TEC-GST-WVO-J04-18406-B-2A 80 NHUE RIVER CROSSING DECK - PT - PLAN VIEW & ELEVATION - 7 / 7 VƯ T SÔNGNHU B N M T C U - PT - M T B NG& M T NG - 7/7 PIC-TEC-GST-WVO-J04-18407-B-2A 81 NHUE RIVER CROSSING DECK - PT - SUMMARYAND SEQUENCES VƯ T SÔNGNHU B N M T C U - PT - TÓM T T VÀ CÁC TRÌNH T PIC-TEC-GST-WVO-J04-18408-B-2A 82 NHUE RIVER CROSSING DECK - PT - CROSS SECTIONS - 1 / 10 VƯ T SÔNGNHU B N M T C U - PT - M T C T - 1/10 PIC-TEC-GST-WVO-J04-18410-B-2A 83 NHUE RIVER CROSSING DECK - PT - CROSS SECTIONS - 2 / 10 VƯ T SÔNGNHU B N M T C U - PT - M T C T - 2/10 PIC-TEC-GST-WVO-J04-18411-B-2A 84 NHUE RIVER CROSSING DECK - PT - CROSS SECTIONS - 3 / 10 VƯ T SÔNGNHU B N M T C U - PT - M T C T - 3/10 PIC-TEC-GST-WVO-J04-18412-B-2A 85 NHUE RIVER CROSSING DECK - PT - CROSS SECTIONS - 4 / 10 VƯ T SÔNGNHU B N M T C U - PT - M T C T - 4/10 PIC-TEC-GST-WVO-J04-18413-B-2A 86 NHUE RIVER CROSSING DECK - PT - CROSS SECTIONS - 5 / 10 VƯ T SÔNGNHU B N M T C U - PT - M T C T - 5/10 PIC-TEC-GST-WVO-J04-18414-B-2A 87 NHUE RIVER CROSSING DECK - PT - CROSS SECTIONS - 6 / 10 VƯ T SÔNGNHU B N M T C U - PT - M T C T - 6/10 PIC-TEC-GST-WVO-J04-18415-B-2A 88 NHUE RIVER CROSSING DECK - PT - CROSS SECTIONS - 7 / 10 VƯ T SÔNGNHU B N M T C U - PT - M T C T - 7/10 PIC-TEC-GST-WVO-J04-18416-B-2A 89 NHUE RIVER CROSSING DECK - PT - CROSS SECTIONS - 8 / 10 VƯ T SÔNGNHU B N M T C U - PT - M T C T - 8/10 PIC-TEC-GST-WVO-J04-18417-B-2A 90 NHUE RIVER CROSSING DECK - PT - CROSS SECTIONS - 9 / 10 VƯ T SÔNGNHU B N M T C U - PT - M T C T - 9/10 PIC-TEC-GST-WVO-J04-18418-B-2A 91 NHUE RIVER CROSSING DECK - PT - CROSS SECTIONS - 10 / 10 VƯ T SÔNGNHU B N M T C U - PT - M T C T - 10/10 PIC-TEC-GST-WVO-J04-18419-B-2A 92 NHUE RIVER CROSSING DECK - PT - FUTURE ADDITIONAL PT - 1 / 3 VƯ T SÔNGNHU B N M T C U - PT - PT B SUNGTƯƠNGLAI - 1/3 PIC-TEC-GST-WVO-J04-18450-B-2A 93 NHUE RIVER CROSSING DECK - PT - FUTURE ADDITIONAL PT - 2 / 3 VƯ T SÔNGNHU B N M T C U - PT - PT B SUNGTƯƠNGLAI - 2/3 PIC-TEC-GST-WVO-J04-18451-B-2A 94 NHUE RIVER CROSSING DECK - PT - FUTURE ADDITIONAL PT - 3 / 3 VƯ T SÔNGNHU B N M T C U - PT - PT B SUNGTƯƠNGLAI - 3/3 PIC-TEC-GST-WVO-J04-18452-B-2A 95 NHUE RIVER CROSSING DECK - PT - EMERGENCYPT VƯ T SÔNGNHU B N M T C U - DƯL - DƯL D PHÒNG PIC-TEC-GST-WVO-J04-18460-B-2A 96 NHUE RIVER CROSSING DECK - SA1-SA1'-SB1-SB1' - REINF - 1 / 2 VƯ T SÔNGNHU B N M T C U - SA1-SA1'-SB1-SB1' - C T THÉP 1/2 PIC-TEC-GRR-WVO-J04-18500-B-3A 97 NHUE RIVER CROSSING DECK - SA1-SA1'-SB1-SB1' - REINF - BAR LIST - 2 / 2 VƯ T SÔNGNHU B N M T C U - SA1-SA1'-SB1-SB1' - C T THÉP - DANH M C THANH - 2/2 PIC-TEC-GRR-WVO-J04-18501-B-2A 98 NHUE RIVER CROSSING DECK - SA2'-SB2' - REINF - 1 / 2 VƯ T SÔNGNHU B N M T C U - SA2'-SB2' - C T THÉP 1/2 PIC-TEC-GRR-WVO-J04-18504-B-3A 99 NHUE RIVER CROSSING DECK - SA2'-SB2' - REINF - BAR LIST - 2 / 2 VƯ T SÔNGNHU B N M T C U - SA2'-SB2' - C T THÉP - DANH M C THANH - 2/2 PIC-TEC-GRR-WVO-J04-18505-B-2A 100 NHUE RIVER CROSSING DECK - SA2-SB2 - REINF - 1 / 2 VƯ T SÔNGNHU B N M T C U - SA2-SB2 - C T THÉP 1/2 PIC-TEC-GRR-WVO-J04-18508-B-3A 101 NHUE RIVER CROSSING DECK - SA2-SB2 - REINF - BAR LIST - 2 / 2 VƯ T SÔNGNHU B N M T C U - SA2-SB2 - C T THÉP - DANH M C THANH - 2/2 PIC-TEC-GRR-WVO-J04-18509-B-2A 102 NHUE RIVER CROSSING DECK - SA3'-SB3' - REINF - 1 / 2 VƯ T SÔNGNHU B N M T C U - SA3'-SB3' - C T THÉP 1/2 PIC-TEC-GRR-WVO-J04-18512-B-3B 103 NHUE RIVER CROSSING DECK - SA3'-SB3' - REINF - BAR LIST - 2 / 2 VƯ T SÔNGNHU B N M T C U - SA3'-SB3' - C T THÉP - DANH M C THANH - 2/2 PIC-TEC-GRR-WVO-J04-18513-B-3A 104 NHUE RIVER CROSSING DECK - SA3-SB3 - REINF - 1 / 2 VƯ T SÔNGNHU B N M T C U - SA3-SB3 - C T THÉP 1/2 PIC-TEC-GRR-WVO-J04-18516-B-3B 105 NHUE RIVER CROSSING DECK - SA3-SB3 - REINF - BAR LIST - 2 / 2 VƯ T SÔNGNHU B N M T C U - SA3-SB3 - C T THÉP - DANH M C THANH - 2/2 PIC-TEC-GRR-WVO-J04-18517-B-3A 106 NHUE RIVER CROSSING DECK - SA4'-SB4' - REINF - 1 / 2 VƯ T SÔNGNHU B N M T C U - SA4'-SB4' - C T THÉP 1/2 PIC-TEC-GRR-WVO-J04-18520-B-3B 107 NHUE RIVER CROSSING DECK - SA4'-SB4' - REINF - BAR LIST - 2 / 2 VƯ T SÔNGNHU B N M T C U - SA4'-SB4' - C T THÉP - DANH M C THANH - 2/2 PIC-TEC-GRR-WVO-J04-18521-B-3A 108 NHUE RIVER CROSSING DECK - SA4-SB4 - REINF - 1 / 2 VƯ T SÔNGNHU B N M T C U - SA4-SB4 - C T THÉP 1/2 PIC-TEC-GRR-WVO-J04-18524-B-3B 109 NHUE RIVER CROSSING DECK - SA4-SB4 - REINF - BAR LIST - 2 / 2 VƯ T SÔNGNHU B N M T C U - SA4-SB4 - C T THÉP - DANH M C THANH - 2/2 PIC-TEC-GRR-WVO-J04-18525-B-3A No / STT Drawing Title 1 Drawing Title 2 Tiêu 1 c a b n v Tiêu 2 c a b n v Reference No / S tham chi u
  • 4.
    110 NHUE RIVERCROSSING DECK - SA5'-SB5' - REINF - 1 / 2 VƯ T SÔNGNHU B N M T C U - SA5'-SB5' - C T THÉP 1/2 PIC-TEC-GRR-WVO-J04-18528-B-3B 111 NHUE RIVER CROSSING DECK - SA5'-SB5' - REINF - BAR LIST - 2 / 2 VƯ T SÔNGNHU B N M T C U - SA5'-SB5' - C T THÉP - DANH M C THANH - 2/2 PIC-TEC-GRR-WVO-J04-18529-B-3A 112 NHUE RIVER CROSSING DECK - SA5-SB5 - REINF - 1 / 2 VƯ T SÔNGNHU B N M T C U - SA5-SB5 - C T THÉP 1/2 PIC-TEC-GRR-WVO-J04-18532-B-3B 113 NHUE RIVER CROSSING DECK - SA5-SB5 - REINF - BAR LIST - 2 / 2 VƯ T SÔNGNHU B N M T C U - SA5-SB5 - C T THÉP - DANH M C THANH - 2/2 PIC-TEC-GRR-WVO-J04-18533-B-3A 114 NHUE RIVER CROSSING DECK - SA6'-SB6' - REINF - 1 / 2 VƯ T SÔNGNHU B N M T C U - SA6'-SB6' - C T THÉP 1/2 PIC-TEC-GRR-WVO-J04-18536-B-3A 115 NHUE RIVER CROSSING DECK - SA6'-SB6' - REINF - BAR LIST - 2 / 2 VƯ T SÔNGNHU B N M T C U - SA6'-SB6' - C T THÉP - DANH M C THANH - 2/2 PIC-TEC-GRR-WVO-J04-18537-B-2A 116 NHUE RIVER CROSSING DECK - SA6-SB6 - REINF - 1 / 2 VƯ T SÔNGNHU B N M T C U - SA6-SB6 - C T THÉP 1/2 PIC-TEC-GRR-WVO-J04-18540-B-3A 117 NHUE RIVER CROSSING DECK - SA6-SB6 - REINF - BAR LIST - 1 / 2 VƯ T SÔNGNHU B N M T C U - SA6-SB6 - C T THÉP - DANH M C THANH - 1/2 PIC-TEC-GRR-WVO-J04-18541-B-2A 118 NHUE RIVER CROSSING DECK - SA7'-SB7' - REINF - 1 / 2 VƯ T SÔNGNHU B N M T C U - SA7'-SB7' - C T THÉP 1/2 PIC-TEC-GRR-WVO-J04-18544-B-3A 119 NHUE RIVER CROSSING DECK - SA7'-SB7' - REINF - BAR LIST - 1 / 2 VƯ T SÔNGNHU B N M T C U - SA7'-SB7' - C T THÉP - DANH M C THANH - 1/2 PIC-TEC-GRR-WVO-J04-18545-B-2A 120 NHUE RIVER CROSSING DECK - SA7-SB7 - REINF - 1 / 2 VƯ T SÔNGNHU B N M T C U - SA7-SB7 - C T THÉP 1/2 PIC-TEC-GRR-WVO-J04-18548-B-3A 121 NHUE RIVER CROSSING DECK - SA7-SB7 - REINF - BAR LIST - 1 / 2 VƯ T SÔNGNHU B N M T C U - SA7-SB7 - C T THÉP - DANH M C THANH - 1/2 PIC-TEC-GRR-WVO-J04-18549-B-2A 122 NHUE RIVER CROSSING DECK - SA8'-SB8' - REINF - 1 / 2 VƯ T SÔNGNHU B N M T C U - SA8'-SB8' - C T THÉP 1/2 PIC-TEC-GRR-WVO-J04-18552-B-3A 123 NHUE RIVER CROSSING DECK - SA8'-SB8' - REINF - BAR LIST - 1 / 2 VƯ T SÔNGNHU B N M T C U - SA8'-SB8' - C T THÉP - DANH M C THANH - 1/2 PIC-TEC-GRR-WVO-J04-18553-B-2A 124 NHUE RIVER CROSSING DECK - SA8-SB8 - REINF - 1 / 2 VƯ T SÔNGNHU B N M T C U - SA8-SB8 - C T THÉP 1/2 PIC-TEC-GRR-WVO-J04-18556-B-3A 125 NHUE RIVER CROSSING DECK - SA8-SB8 - REINF - BAR LIST - 1 / 2 VƯ T SÔNGNHU B N M T C U - SA8-SB8 - C T THÉP - DANH M C THANH - 1/2 PIC-TEC-GRR-WVO-J04-18557-B-2A 126 NHUE RIVER CROSSING DECK - SA9'-SB9' - REINF - 1 / 2 VƯ T SÔNGNHU B N M T C U - SA9'-SB9' - C T THÉP 1/2 PIC-TEC-GRR-WVO-J04-18560-B-3A 127 NHUE RIVER CROSSING DECK - SA9'-SB9' - REINF - BAR LIST - 1 / 2 VƯ T SÔNGNHU B N M T C U - SA9'-SB9' - C T THÉP - DANH M C THANH - 1/2 PIC-TEC-GRR-WVO-J04-18561-B-2A 128 NHUE RIVER CROSSING DECK - SA9-SB9 - REINF - 2 / 2 VƯ T SÔNGNHU B N M T C U - SA9-SB9 - C T THÉP 1/2 PIC-TEC-GRR-WVO-J04-18564-B-3A 129 NHUE RIVER CROSSING DECK - SA9-SB9 - REINF - BAR LIST - 1 / 2 VƯ T SÔNGNHU B N M T C U - SA9-SB9 - C T THÉP - DANH M C THANH - 1/2 PIC-TEC-GRR-WVO-J04-18565-B-2A 130 NHUE RIVER CROSSING DECK - S3 - REINF - 2 / 2 VƯ T SÔNGNHU B N M T C U - S3 - C T THÉP 2/2 PIC-TEC-GRR-WVO-J04-18568-B-3A 131 NHUE RIVER CROSSING DECK - S3 - REINF - BAR LIST - 2 / 2 VƯ T SÔNGNHU B N M T C U - S3- C T THÉP - DANH M C THANH - 2/2 PIC-TEC-GRR-WVO-J04-18569-B-2A 132 NHUE RIVER CROSSING DECK - S1-S2 - REINF - 2 / 2 VƯ T SÔNGNHU B N M T C U - S1-S2 - C T THÉP 2/2 PIC-TEC-GRR-WVO-J04-18572-B-3A 133 NHUE RIVER CROSSING DECK - S1-S2 - REINF - BAR LIST - 2 / 2 VƯ T SÔNGNHU B N M T C U -S1-S2 - C T THÉP - DANH M C THANH - 2/2 PIC-TEC-GRR-WVO-J04-18573-B-2A 134 NHUE RIVER CROSSING DECK - PS1-PS2 - REINF - 1 / 5 VƯ T SÔNGNHU B N M T C U - PS1-PS2 - C T THÉP 1/5 PIC-TEC-GRR-WVO-J04-18580-B-3A 135 NHUE RIVER CROSSING DECK - PS1-PS2 - REINF - 2 / 5 VƯ T SÔNGNHU B N M T C U - PS1-PS2 - C T THÉP 2/5 PIC-TEC-GRR-WVO-J04-18581-B-3A 136 NHUE RIVER CROSSING DECK - PS1-PS2 - REINF - 3 / 5 VƯ T SÔNGNHU B N M T C U - PS1-PS2 - C T THÉP 3/5 PIC-TEC-GRR-WVO-J04-18582-B-3A 137 NHUE RIVER CROSSING DECK - PS1-PS2 - REINF - 4 / 5 VƯ T SÔNGNHU B N M T C U - PS1-PS2 - C T THÉP 4/5 PIC-TEC-GRR-WVO-J04-18583-B-3A 138 NHUE RIVER CROSSING DECK - PS1-PS2 - REINF - 5 / 5 VƯ T SÔNGNHU B N M T C U - PS1-PS2 - C T THÉP 5/5 PIC-TEC-GRR-WVO-J04-18584-B-3A 139 NHUE RIVER CROSSING DECK - PS1-PS2 - REINF - BAR LIST - 1 / 3 VƯ T SÔNGNHU B N M T C U -PS1-PS2 - C T THÉP - DANH M C THANH - 1/3 PIC-TEC-GRR-WVO-J04-18585-B-2A 140 NHUE RIVER CROSSING DECK - PS1-PS2 - REINF - BAR LIST - 2 / 3 VƯ T SÔNGNHU B N M T C U -PS1-PS2 - C T THÉP - DANH M C THANH - 2/3 PIC-TEC-GRR-WVO-J04-18586-B-2A 141 NHUE RIVER CROSSING DECK - PS1-PS2 - REINF - BAR LIST - 3 / 3 VƯ T SÔNGNHU B N M T C U -PS1-PS2 - C T THÉP - DANH M C THANH - 3/3 PIC-TEC-GRR-WVO-J04-18587-B-2A 142 NHUE RIVER CROSSING DECK - ES1-ES2 - REINF - 1 / 5 VƯ T SÔNGNHU B N M T C U - ES1-ES2 - C T THÉP 1/5 PIC-TEC-GRR-WVO-J04-18590-B-3A 143 NHUE RIVER CROSSING DECK - ES1-ES2 - REINF - 2 / 5 VƯ T SÔNGNHU B N M T C U - ES1-ES2 - C T THÉP 2/5 PIC-TEC-GRR-WVO-J04-18591-B-3A 144 NHUE RIVER CROSSING DECK - ES1-ES2 - REINF - 3 / 5 VƯ T SÔNGNHU B N M T C U - ES1-ES2 - C T THÉP 3/5 PIC-TEC-GRR-WVO-J04-18592-B-3A 145 NHUE RIVER CROSSING DECK - ES1-ES2 - REINF - 4 / 5 VƯ T SÔNGNHU B N M T C U - ES1-ES2 - C T THÉP 4/5 PIC-TEC-GRR-WVO-J04-18593-B-3A 146 NHUE RIVER CROSSING DECK - ES1-ES2 - REINF - 5 / 5 VƯ T SÔNGNHU B N M T C U - ES1-ES2 - C T THÉP 5/5 PIC-TEC-GRR-WVO-J04-18594-B-3A 147 NHUE RIVER CROSSING DECK - ES1-ES2 - REINF - BAR LIST - 1 / 3 VƯ T SÔNGNHU B N M T C U -ES1-ES2 - C T THÉP - DANH M C THANH - 1/3 PIC-TEC-GRR-WVO-J04-18595-B-2A 148 NHUE RIVER CROSSING DECK - ES1-ES2 - REINF - BAR LIST - 2 / 3 VƯ T SÔNGNHU B N M T C U -ES1-ES2 - C T THÉP - DANH M C THANH - 2/3 PIC-TEC-GRR-WVO-J04-18596-B-2A 149 NHUE RIVER CROSSING DECK - ES1-ES2 - REINF - BAR LIST - 3 / 3 VƯ T SÔNGNHU B N M T C U -ES1-ES2 - C T THÉP - DANH M C THANH - 3/3 PIC-TEC-GRR-WVO-J04-18597-B-2A 150 NHUE RIVER CROSSING DECK - BLISTER TYPE 7 - REINF VƯ T SÔNGNHU B N M T C U - BLISTER LO I 7 - C T THÉP PIC-TEC-GRR-WVO-J04-18650-B-3A 151 NHUE RIVER CROSSING DECK - BLISTER TYPE 7 - REINF - BAR LIST VƯ T SÔNGNHU B N M T C U - BLISTER LO I 7 - C T THÉP - DANH M C THANH PIC-TEC-GRR-WVO-J04-18651-B-2A 152 NHUE RIVER CROSSING DECK - BLISTER TYPE 6 - REINF VƯ T SÔNGNHU B N M T C U - BLISTER LO I 6 - C T THÉP PIC-TEC-GRR-WVO-J04-18652-B-3A 153 NHUE RIVER CROSSING DECK - BLISTER TYPE 6 - REINF - BAR LIST VƯ T SÔNGNHU B N M T C U - BLISTER LO I 6 - C T THÉP - DANH M C THANH PIC-TEC-GRR-WVO-J04-18653-B-2A 154 NHUE RIVER CROSSING DECK - BLISTER TYPE 5 - REINF VƯ T SÔNGNHU B N M T C U - BLISTER LO I 5 - C T THÉP PIC-TEC-GRR-WVO-J04-18654-B-3A 155 NHUE RIVER CROSSING DECK - BLISTER TYPE 5 - REINF - BAR LIST VƯ T SÔNGNHU B N M T C U - BLISTER LO I 5 - C T THÉP - DANH M C THANH PIC-TEC-GRR-WVO-J04-18655-B-2A 156 NHUE RIVER CROSSING DECK - BLISTER TYPE 4 - REINF VƯ T SÔNGNHU B N M T C U - BLISTER LO I 4 - C T THÉP PIC-TEC-GRR-WVO-J04-18656-B-3A 157 NHUE RIVER CROSSING DECK - BLISTER TYPE 4 - REINF - BAR LIST VƯ T SÔNGNHU B N M T C U - BLISTER LO I 4 - C T THÉP - DANH M C THANH PIC-TEC-GRR-WVO-J04-18657-B-2A 158 NHUE RIVER CROSSING DECK - BLISTER TYPE 3 - REINF VƯ T SÔNGNHU B N M T C U - BLISTER LO I 3 - C T THÉP PIC-TEC-GRR-WVO-J04-18658-B-3A 159 NHUE RIVER CROSSING DECK - BLISTER TYPE 3 - REINF - BAR LIST VƯ T SÔNGNHU B N M T C U - BLISTER LO I 3 - C T THÉP - DANH M C THANH PIC-TEC-GRR-WVO-J04-18659-B-2A 160 NHUE RIVER CROSSING DECK - BLISTER TYPE 2 - REINF VƯ T SÔNGNHU B N M T C U - BLISTER LO I 2 - C T THÉP PIC-TEC-GRR-WVO-J04-18660-B-3A 161 NHUE RIVER CROSSING DECK - BLISTER TYPE 2 - REINF - BAR LIST VƯ T SÔNGNHU B N M T C U - BLISTER LO I 2 - C T THÉP - DANH M C THANH PIC-TEC-GRR-WVO-J04-18661-B-2A 162 NHUE RIVER CROSSING DECK - BLISTER TYPE 1 - REINF VƯ T SÔNGNHU B N M T C U - BLISTER LO I 1 - C T THÉP PIC-TEC-GRR-WVO-J04-18662-B-3A 163 NHUE RIVER CROSSING DECK - BLISTER TYPE 1 - REINF - BAR LIST VƯ T SÔNGNHU B N M T C U - BLISTER LO I 1 - C T THÉP - DANH M C THANH PIC-TEC-GRR-WVO-J04-18663-B-2A No / STT Drawing Title 1 Drawing Title 2 Tiêu 1 c a b n v Tiêu 2 c a b n v Reference No / S tham chi u No / STT Drawing Title 1 Drawing Title 2 Tiêu 1 c a b n v Tiêu 2 c a b n v Reference No / S tham chi u 164 NHUE RIVER CROSSING DECK - DEVIATOR TYPE1 - REINF VƯ T SÔNGNHU B N M T C U - B CHUY N HƯ NGLO I 1 - C T THÉP PIC-TEC-GRR-WVO-J04-18670-B-3A 165 NHUE RIVER CROSSING DECK - DEVIATOR TYPE1 - REINF - BAR LIST VƯ T SÔNGNHU B N M T C U - B CHUY N HƯ NGLO I 1 - C T THÉP - DANH M C THANH PIC-TEC-GRR-WVO-J04-18671-B-2A 166 NHUE RIVER CROSSING DECK - DEVIATOR TYPE2 - REINF VƯ T SÔNGNHU B N M T C U - B CHUY N HƯ NGLO I 2 - C T THÉP PIC-TEC-GRR-WVO-J04-18672-B-3A 167 NHUE RIVER CROSSING DECK - DEVIATOR TYPE2 - REINF - BAR LIST VƯ T SÔNGNHU B N M T C U - B CHUY N HƯ NGLO I 2 - C T THÉP - DANH M C THANH PIC-TEC-GRR-WVO-J04-18673-B-2A 168 NHUE RIVER CROSSING DECK - PARAPET-TYPICAL - SECTION & ELEVATION VƯ T SÔNGNHU B N M T C U - LAN CAN I N HÌNH - M T C T VÀ M T NG PIC-TEC-GAD-WVO-J04-18800-B-2A 169 NHUE RIVER CROSSING DECK - DRAINAGE PRINCIPLE - MISCELLANEOUS - 1 / 4 VƯ T SÔNGNHU B N M T C U - NGUYÊN LÝTHOÁT NƯ C - CÁC B PH N PH TR - 1/4 PIC-TEC-GAD-WVO-J04-18810-B-2A 170 NHUE RIVER CROSSING DECK - DRAINAGE PRINCIPLE - MISCELLANEOUS - 2 / 4 VƯ T SÔNGNHU B N M T C U - NGUYÊN LÝTHOÁT NƯ C - NH NGNGUYÊN T C KHÁC - 2/4 PIC-TEC-GAD-WVO-J04-18811-B-2A 171 NHUE RIVER CROSSING DECK - DRAINAGE PRINCIPLE - MISCELLANEOUS - 3 / 4 VƯ T SÔNGNHU B N M T C U - NGUYÊN LÝTHOÁT NƯ C - NH NGNGUYÊN T C KHÁC - 3/4 PIC-TEC-GAD-WVO-J04-18812-B-2A 172 NHUE RIVER CROSSING DECK - DRAINAGE PRINCIPLE - MISCELLANEOUS - 4 / 4 VƯ T SÔNGNHU B N M T C U - NGUYÊN LÝTHOÁT NƯ C - NH NGNGUYÊN T C KHÁC - 4/4 PIC-TEC-GAD-WVO-J04-18813-B-2A 173 NHUE RIVER CROSSING GENERAL - SCHEDULE VƯ T SÔNGNHU CHUNG- T NGH P PIC-TEC-GAD-WVO-J04-18900-B-3B
  • 5.
    CHAINAGE ~ N ....Lyb1nh (0 .,; r;(0 ~;-;; - -DIFFERENCE =R.L. - G.L :!iii ~CH£NH Ll;:CH= R.L-G.L ~ "<!; - -- -ROAD LEVEL ~ ~.CAO E>O E>U'O'NG .... RAIL LEVELS ~ CD CAOE>ORAY ~CD ~ -VERTICAL GRADIENTS L=160A7E>Qd6c:doc Slp"'1.76'11> E>O oOc =1.16% HORIZONTAL CURVE DETAILS Qlc chi HM lflltmg cong nAm L=72.50m R=3000.00m ~ 1!I Ill I I ~ u 2A. 30/04/11 2nd -..txnlmlon oflBchnlcal dellgn ~ s 1D 01110/10 UPDATED F = 1C 25/08/10 Updalod ,,11 1B 211/0B/10 UPDATED !II§ Ii 1A. 31/01/10 Data Miming REVISION o.t.TE llEllCRl'TlON ... n sil'A.00 NClAY NOi lllJolBsUAOOI t----+---t----------------+----+-----t>------i CLIENT: CHOeAuTLI:____________________________,,______, HRB A.. K . A.maud 1--=....p;;;;;;;;;.;.;;....i-.:;;:;=;:..._------------+-A..:;.;.K;:...__ _=:;;;;:......p;..;..;;A.maud=:.........i HANOI METROPOLITAN RAILTRANSPORT PROJECT BOARD ..... K .A.maud BAN DI/ ANeul)No ~TeO THIHhQI IUllllllBr aiEOOBr aEFCl'DED TIElll! saT allN1$TIElll! • 65000 d1en bridge E PLAN VIEW MAT BANG SCALE: 11250 TY LI;:: 11250 B NHUE RIVER SOng Nhut LONGITUDINAL ELEVATION MAT CAT DOC " SCALE : 11250 TYL!;:: 11250 -~ LONGITUDINAL PROFILE TRACDQC SCALE: 11250 TYLS: 1/250 PROJECT IMPLEMENTATION CONSULTANT 1Uv>H THl,IC HleN Dl,r AN SYSTRAS.A FILENAME~N BAN1/£: DESIGNED BYlTlllitr~ : AK CHECKED BYlBOAT : G. Maurls ~ "! ~ ;-;; -;:: N N -N 8 oci 8 "'0 N ~ LVC=43.93 R=2500.00 FORllAT KHO BAN~ : A1 STATJSH~H~G: Technical Design DAlENGAY: 31/01/10 Thil dl8Wil"G rn.ilt not be lither loll'lld. copildcroet.'will repnxlUOld h whcll•or In pmrt cruMldfar•ny prupmewllhaul:tt.pftJrwrtllsl permi.lond HRB. N ...."": -c;; "'- ~N -OI N CD ....: "';-;; 0N L 152.91 Slp:.0.00% ElO DOC =0.00% NOTE : CHOY: 1. ALL DIMENSIONS ARE IN MILLIMETERS-LEVELS ARE IN METER 1.TAT cA cAc KICH THl/OCElllO'CE>O BANG MM -cAC CAOE>OEll/O'C TINH BANG M PROJECTDU'AN: HANOI PILOTLIGHT METRO LINE Section Nhon-HanoiRailway Station TIJY~N Ell/ONGs.6.TE>OTHI THI Ell~M1P HANOi 8ofn Nh&i·Ge HiN(li mm~ BANI/£ : NHUE RIVER CROSSING VllO'T SONG NHUI; GAD-1 / 3 GAD- 113 PROJECT DIRECTORIGW..!lOcDI/AN : CHEFDESIG~ICHONHla,i !Hit! ~ : Un '6nlly llhengWqc phOp10 d,,,g duGI .... him Olllc, m0tpl'jn hoy toiln bO, mA llhengWqclV d!ng9bing'*' bino.lo HRS. DRAWING NO.IBAN1/£SO: Alain ~ereau P. Amaud PIC-TEC-GAD-WVO-J04-18001-B 2A
  • 6.
    ~ 1!I Ill I I ~ u~ sF~ ,,11 !II§ Ii ... n E( r-, I I I l I I I I I I I I I I D ,-------- ~===r===-l===i==============r=-=:::1-===i===~ I I I I I I Ud UdSECTION A-A MAT CATA-A SCALE: 1/50 TYLE:: 1150 t----+---t----------------+----+-----t>-------i CLIENT: CHOeAuTLI:_____________________________,,_______, 2A. 30/04/11 2nd -..txnlmlon oflBchnlcal dellgn 10 01110/10 UPDATED HRB TOP OF PIER LEVEL CAO 00 DINH TRl,J ..... •1C 25/08/10 Updalod 1B 211/0B/10 UPDATED A.. K . A.maud 1--=-..p;;=;.;;.._i-..;;;:;= ;;.._------------+-...._;;..;.K'----=;;;;;;.....p;..;..;;A.maud='---I HANOI METROPOLITAN RAILTRANSPORT PROJECT BOARD TOP OF RAIL LEVEL __J__ CAOE>QOINH RAY t=---·---·---·---·~·---·---·---·---·1 TOP~~~EVEL ~=:-----------------, . ,-----------------=~OfllNH BAN ~Tc.Au ~ ~------1------~ ~ -~--- 1 l------~-----J I-------------------1-------1-------L------------------- ~~~:~~R~~VEL r--------------.-------1----.---~~-.:==~-====~-====::::.~-~~--- I I I I I 3Jio I 2£iio I ROAD LEVEL n n CAOE>OfllJONG -------------H'-4+----+-----+i-++--- ---·--- · ---- ~ - -- ! r------------ ---------------, I ~--r--~ ~--t--~ ~--1--~ Ic-1--- --1-----------0------.-----------T-- ---,- ~ -,--- --T-----------,------, -----------1-- ---1- 1 I I I I I Ud Ud UdVIEW 1-1 GOC NHlN 1-1 SCALE: 1/50 TYLE:: 1/50 NOTE : CHOY: 1. ALL DIMENSIONS ARE IN MILLIMETERS-LEVELS ARE IN METER 1.TAT cA cAc KICH THl/OCOl/O'CflO BANG MM -cAC CAOflO fllJQ'C TINHBANG M PROJECT IMPLEMENTATION CONSULTANT 1Uv>H Tlil,IC HleNDl,r AN FILENAMEI~N BAN~: STATJSH~H~G : Technical Design PROJECTDU' All: HANOI PILOTLIGHT METRO LINE Section Nhon-HanoiRailway Station TIJY~N fll/ONG s.6.TeOTHITHIfll~M1P HA NOi 8ofn Nh&i-Ge HiN(li SYSTRAS.A DESIGNED BYTlllitr~ : AK CHECKED BYsoAT : G. Maurls FORllATIKHO BAN~ : A1 DATEINGAY: 31/01/10 Thil dl8Wil"G rn.ilt not be lither loll'lld. copildcroet.'will repnxlUOld h whcll•or In pmrt cruMldfar•ny prupmewllhaul:tt.pftJr wrtllsl permi.lond HRB. nTLEl~BAN~ : NHUE RIVER CROSSING Vl!O'T SONG NHUI;: GAD-2 / 3 GAD -2 /3 1A. 31/01/10 Data Miming ..... K .A.maud BAN DI/ ANeul)No ~TeO THIHhQI IUlllllllll" aiEOOlll" aEFCl'DED PROJECT DIRECTORIGW..!lOcDI/AN : CHEF DESIG~ CHONHla,i THl8 ~ : Un '6nlly llhengWqc phOp10 d,,,g duGI .... him Olllc, m0tpl'jn hoy loiln bO. mA llhengWqc•• ding9l>il'G '*'bina.lo HRS. DRAWINGNO.IBAN~SO:REVISION O...TE llEllCRl'TlON sil'A.00 NClAY NQl lllN)sUAOOI TIElll! SQl:r allN1$TIElll! Alain ~ereau P. Amaud PIC-TEC-GAD-WVO-J04-18002-B 2A
  • 7.
    ~ 1!I Ill I... E(' 'I I ,-,II I ~ u~ sF ~ ,,11 !II§ Ii n I I I I I I I 51 I I TOP OF RAIL LEVEL CAOflQfllNH RAY ·---~--- TOP OF DECK LEVEL CAOfl0fllNH BAN ~T cAu -~---- TOP OF PIER LEVEL CAOfl0 fllNH TRl,J --·---·---·---·---·_I___·-- ----, I I I I I I I ~-.£:1=-71::-------£-~l~:t.-~- 1--1-1 - - - - - ,-1--1 - I · I I · I W LP SECTION C-C M~TCATC-C SCALE: 1/50 TY Le: 1/50 DI I I I I I I ROAD LEVEL CAO fl0 fliJONG___I.___. _ _ t-----+---t----------------+----+------t>-------i CLIENT: CHOeAuTLI:_____________________________,,________, 2A. 30/04/11 2nd -..txnlmlon oflBchnlcal dellgn 1D 01110/10 UPDATED HRB U-GIRDER IDAMU BOX-GIRDER DAMH TOP OF RAIL LEVEL CAOflQfllNH RAY t_ __ -- - ~--- TOP OF PIER LEVEL CAOfl0fllNH TRl,J ---·--- ·----~·--- ROAD LEVEL CAOflOfliJONG ----++-tt----+---tf-'t-+------·---·~·-- r--- ----, I I I I I I I I I I ~-.£=1=-71::-------£-~i~:t.-~- 1 --1-1 - - - - - 1 -1--1 - I · I I . I W LP VIEW2-2 G6C NHlN 2-2 SCALE: 1/50 TY Le: 1150 •PROJECT IMPLEMENTATION CONSULTANT 1Uv>H Tlil,IC HleN Dl,r AN SYSTRAS.A FILENAMEI~N BAN~ : DESIGNED BYTlllitr~ : AK 1C 25/08/10 Updalod 1B 211/0B/10 UPDATED A.. K . A.maud 1--'-"---+"=;.;;.._i-==;;.....------------+-...._;;..;.K'----=;;;;;;...-+'..;..;;A.maud='--I HANOI METROPOLITAN RAILTRANSPORT PROJECT BOARD CHECKED BYsoAT : G. Maurls 1A. 31/01/10 F1.m1.... REVISION o.t.TE llEllCRl'TlON sil'AOO NClAY NOilllJolBsUAOOI A.. K .A.maud BAN DI/ ANEuONO ~Tfl0 THIHhQI IUllllllBr aiEOOBr aEFCl'DED TIElll! SQl:r allN1$TIElll! PROJECT DIRECTORIGW..!lOcOiiAN : Alain ~ereau CHEF DESIG~I CHONHla,i !Hit! ~ : P. Arnaud TOP OF RAIL LEVEL CAOfl0 EINH RAY ______I__.__ TOP OF DECK LEVEL CAOEOE>INH BAN M,l,.T cAU y SOFFIT LEVEL CAOE>OVOM --------------..1--·---·---·---·_I__·-- NOTE : CHOY: FORllATIKHO BAN~ : A1 STATJSH~H~G: Technical Design DAlEINGAY: 31/01/10 Thil dl8Wil"G rn.ilt not be lither loll'lld. copildcroet.'will repnxlUOld h whcll•or In pmrt cruMldfar•ny prupmewllhaul:tt.pftJr wrtllsl permi.lond HRB. Un '6nlly llhengWqc phOp10 d,,,g duGI .... him Olllc, m0tpl"jn hoy toiln bO, mA llhengWqclV d!ngtbil'G'*' bino.lo HRS. 1. ALL DIMENSIONS ARE IN MILLIMETERS-LEVELS ARE IN METER 1.TAT cA cAc KICH THl/OC E>llO'CflO BANG MM -cAC CAOflO fll/O'C TINHBANG M PROJECTDU' All: HANOI PILOTLIGHT METRO LINE Section Nhon-HanoiRailway Station TIJY~N Ell/ONGs.6.TEOTHITHI Ell~M1P HA NOi 8ofn Nh&i-Ge HiN(li nmlIDIBAN~ : NHUE RIVER CROSSING Vl!O'T SONG NHUI;: DRAWING NO.IBAN~SO: GAD-3/3 GAD-3/3 PIC-TEC-GAD-WVO-J04-18003-B 2A
  • 8.
    ~ 1!I Ill I I ~ u~ sF~ ,,11 !II§ Ii ... n ~ OF PIER/EXP. JOINT i1ATRl,J/M01 NOi EXP 38500 @ fn 4950 2000 3000 3000 3000 3000 3000 3000 3000 3000 3000 4500 4500 rOFBEARING -DEi IATORTYPE 1 [ EVIATORTY:>E2- C AGOI~ B ISTERTYPE 7-~ -STITC~ JOINT UCHIJYt:N Hll0NG OA11 U CHUYt:N HllO •G L.Cll.~2 RHOA17 / M01N01 "/ · • · - ..•. .•. ,. . ::~:/~~'.~ ;~.(~:-~~;-. -•· ... ... . ~ ...: _jl11111111 ~I~~111Ill/}J'i, SA5' SA4' SA3' -SA2' -[ SA9' SAS' SA1' PS1 ~ ~ SA7' SA6' ~ .~ __... ~ '".. .. .. ... . ·'. . .. - l~ .... ~ ~ ~ ..•. ~ ~ ...• .' .· ···-·" · :-~::.~·:..:_~. .. ~v... -:.......... ··.: •.. I ......ACCESS OPE ING LeLISTER TYPE 1 "::':;•.•>~>~ 1,;ir;. ~"'.·"l~/.:~:.,j·~.~·.:...~; ::~~·!,:t:• ·: . • ~))1~J'li~TYPE 3 BblSTER TYPE 4---{LISTER TYPE~ ...•• ·l~L~~~~-~~~ ....·:-~ ·. · ~ L ITIEPCAN M CAST ON ·8~0UNO IBl ROLOAI 1 '5 CAST ON ~ROUND £l0C lR~N !MT BANG . R LOAI 4 RO LOAI 5 RO LOAI 6 £l0C lR~N !MT BANG R( DISTANCE FROM ~OF KHoANG cACH TV LCOA EXPANSION JOINT KHE Bl~N DI.ING ALONG COF ALIGNMENT cAC CAO ElO KHAC DOCTJY£N OVERALL DEPTH (D) El0 sAU TONG TH~ SOFFIT THICKNESS (Ts) CHl~U DAY C0A VOM WEB THICKNESS (Tw) CHl!l:U DAYC0A BUNG .,, ~ GIANDAo 2000 3000 SA9' 3000 CAST USING FORM TRAVELLER BY CANTILEVER CONSTRUCTION TECHNIQUE ElUC SO' DUNG cAN mucDI ElONG BANG CONG NGHI; nil CONG aoc HANG 3000 ------ ------ ------ ------ SAS' ·--- 3000 3000 3000 3000 SA7' 3000 3000 SECTION A-A M~L&~i1~-A TY LI;: 11100 38500 3000 3000 3000 ------ ------ ------ ------ ------ ------ ------ ------ SA6' SA5' SA4' ·---· 3000 3000 3000 PLAN VIEW MAT BANG ~CALE : 11100 ti' LI;: 1/100 38500 3000 3000 3000 • ·:-.. •. •• ' ., . . ••• • !"·.·"'' ~ "!'.' ~ ....:t ::- ... .. '.. ·~~. ; ·:. . SA7' 3000 SA6' SA5' 3000 SECTION B-B MATCATB-B "SCALE : 1/100 TY LI;: 1/100 3000 ------ 3000 3000 3000 ------ 3000 3000 o----+----+----------------+-----------i CLIENT: CHOeAuTLI: _______________________________, •PROJECT IMPLEMENTATION CONSULTANT 1Uv>H Tlil,IC HleN 01,r AN SYSTRAS.A 2A 30/D4/11 2nd &1bmll&lon Dftachnlcal dMlgn HRB 1C 25/D8110 Updalod 1B 2111DB/10 UPDATED 1A. 31/01/10 F1.m1.... A.. K . A.maud 1--=--+-=~-+-"==--------------+-A..;;..;K.;.___==--".A.maud.;;;.;;;=..--1 HANOI METROPOLITAN RAILTRANSPORT PROJECT BOARD A.. K .A.maud BAN DI/ ANelrl)No ~HIO THIHhQI 3000 SUPPORTED STAGING 4500 GIANDAO OF DIAPHRAGMS/PIER OATl/ONG VAYfTRU 4500 3 ~---+-------~~1--------­ --------- ---------=-4 . ~:~i::J·---· ~ ------=== ==~-----­ ..--------.!-=--=--=--=--=--=--=--=--=-t -=--=--=--=--=--=--=--=--=- r- 3000 4500 3000 4500 3000 4500 FILENAME~N BAN~: DESIGNED BYTlllitr~ : AK CHECKED BYsoAT : G. Maurls 4500 4500 FORllATI KHO BAN~ : A1 3 3 3 STATJSH~H~G: Technical Design DAlEINGAY: 31/01/10 Thil dl8Wil"G rn.ilt not be lither loll'lld. copildcroet.'will repnxlUOld h whcll•or In pmrt cruMldfar•ny prupmewllhaul:tt.pftJr wrtllsl permi.lond HRB. NOTE : CHOY: 1. ALL DIMENSIONS ARE IN MILLIMETERS-LEVELS ARE IN METER 1.TAT cA cAc KICH THllOCElllO'CElO BANG MM -cAC CAOElOEll.IQ'C TINH BANG M PROJECTDU'AN: HANOI PILOTLIGHT METRO LINE Section Nhon·HanoiRailway Station TIJY~N ElllONGs.6.TEl0 THI THI Ell~M1P HANOi 8ofn Nh&i· Ge HiN(li nmlIDIBAN~ : NHUE RIVER CROSSING Vl!O'T SONG NHUI;: GAD-SEGMENTARRANGEMENT-1 / 3 GAD - BO TRI D0,6.N - 113 REVISION O...TE llEllCRl'TlON IUlllllllll" aiEOOlll" QEHl'DED sil'AOO NClAY NOlllllolBsUAOOI TIElll! SQl:r allN1$TIElll! PROJECT DIRECTORIGW..!lOcOiiAN : CHEFDESIG~ICHONHla,i !Hit! ~ : Alain ~ereau P. Amaud Un '6nlly llhengWqc phOp10 d,,,g duGI .... him Olllc, m0tpl"jn hoy toiln bO, mA llhengWqclV d!ngtbil'G'*' bAnoJo HRS. DRAWING NO.IBAN~SO: PIC-TEC-GAD-WVO-J04-18007-B 2A
  • 9.
    4500 4500 4500 3000 ~ OFDIAPHRAGMS/PIER CfJA TLIO'NG VAYfTPJ.) 4500 3000 3000 3000 3000 3000 3000 3000 3000 -DEV~TOR TYPE~ 1,JCHl~N Hl!ONG la,.12 3000 3000 3000 3000 3000 3000 2dio I 65000 3000 3000 3000 21m I I I 3000 3000 3000 3000 3000 3000 D~ATORTY E21 l,J ~HUY~N HL10 G L~l 2 3000 3000 3000 3000 3000 3000 I I 3000 3000 3000 3000 3000 3000 I I I 4500 4500 ~OF DIAPHRAGMSJPIER CllATOOl~G VAYfTRl,J 4500 4500 ------~------------ ----------- ~ ----------- ------ ------------ ------r------------ ------r---------r-------- ~PS1 4500 4500 4500 I 3000 I 3000 I 3000 I 3000 I 3000 I 3000 I 3000 I 3000 I 3000 I 2rno I 3000 I 3000 I 3000 I 3000 I 3000 I 3000 I 3000 I 3000 I 3000 I ~ OF DIAPHRAGMS/PIER I :OATOONG VAYfTRl,J 4500 3000 3000 3000 3000 3000 3000 3000 3000 PLAN VIE"V MAT BANG SCALE : 1/100 TYL!;: 1/100 65000 3000 21m 3000 3000 3000 3000 3000 3000 3000 3000 3000 PS2 4500 4500 If: OF D~HRAGMS/PIER cfJA 11/0j.iG VAYITRU 4500 4500 __P_S_1_·......'~~~lf'' -~~:~_SA2__11 _••_..._.~_ 1 __ ~-ll_SA4---ll"~'-·-'...-· -··_·_. -+ll.._· _._.._·-SA6=·=·'._·_;._.~_11_SA_7_.__,.~...·._..._~_A8_..·._·.--1-·-·-~-·-··_' ~~ -·-_:e_-9_. _r-·-·~-~-~---·...,ll·-'f'>---··_..._S_B_7___.il"'f-='"~·s_·_B~,6-·_·_...ll_.,__·_S_B_:_---....m..__.._.. .4-~B:1 ~-··-~-~-"_· :, · .02·~ ··:.: ·····~· ~-· «i~~v~L~·-·_· ' •u ;2t~xt::,,=......=,.=...=. +=..::;:....::;_:;::__:;::~t11~,=.::~..="~"*-Y:;'·:;;.._.::_., :!!. '.t.1,_.-_Jld;I:;:::.,~m~.__;::__.:;::::_::::..=..:!L_11..i i ! i_ ·.=.::::::. dlll~_.~,;..-~[Jlm;:_..~-;:-;,J:;:__;::::_;:::,_;::::.,;::::.. d:;~~:.,6~~/b.._:;:.=...=...=...=..:1;;;.;~_~ri;..,;.;__;,;....~.Jll!!:_:::_,::;:::, =:-~..Jilb.=, ;:::_.::_.J.~.!1.d ,;:;:;bl:._._:J.11!::;.._::__ ;;...::::..~.. II~,.:;:;,,_·:;::"·-~:-~11':::;_.:::,__::,:;:__;:d:::;_:,;:>:.::;"":;,._J, ~~11~:(_......-..,-.-_-4500 DISTANCE FROM ~OF KHoANG cAcH TC1 L C0A EXPANSION JOINT ~ iKHEBl~ND~G ALONG tOF ALIGNMENT cAc CAO £10 KHAc DOC TUYEN OVERALL DEPTI-1 (D) £10 sAu TONG THE SOFFIT THICKNESS (Ts) CHIEU DAY COA VOM WEB THICKNESS (Tw) CHIEU DAY COA81,JNG 4500 SECTION B-B MAT CAT B-B "SCALE: 1/100 Ti'Ll;O: 1/100 4500 4500 CHOY: 1. ALL DIMENSIONS ARE IN MILLIMETERS-LEVELS ARE IN METER ~ 1.TAT cAcAc KICH THU'OC £lU'QC00 BANG MM ..cAcCAO £lQ £lU'QCl1NH BANG M ~ I ____________________________,,___ ___, CLIENT: II PROJECT IMPLEMENTATION CONSULTANT ALENMIEITtN BANvE: SCALElrr~: STATUS lT1NHT~: PRO.ECTI DI/ AN : HANOI PILOT UGKT METROLINE Sadlon Nhon. Hrml RalwaySlllllan i ~ 1----+---1-------------------+----11------1 CHO flAU nr: • TV VJN THVCHleN DIJ AN PIC.TEC<JAD.WV<>J<M.11111M0_2A.DW<J Technical Deeign ru~NEll/ONG sAT00 THITHIDlt:MTP HANOi Eollll Nhfin. Ge H~NOi ., SYSTRAS.A - n HRB aes1GNED BY1rn1£r~ : FORJMn~BANv£ : DATEI NGAY: 1ru1n::NBANv£: NHUE RIVER cRoss1NG ~ ~-£! 2A 3MJ.11'11 2nd•ubml11lonoflllchnlcald-.,, A.K G. Maultll P. Amaud A.K A1 31/01110 WQ'TSONGNHUI;: ! ~ !I l--1'-"c--l""2Ml""'lltl~O-i-U""Joda=·111c1"--------------+-A."'-K'-----FG"'-.. Ma""u""ite"-if-"P.""'Amaud=---1 HANOI METROPOLITAN RAIL TRANSPORT PROJECT BOARD Cl£Cl<EDBYsoAT : n.~•-'11"""""""_""_,·_,.,._ __, GAD- SEGMENT ARRANGEMENT-2 / 3 ! ~ 1e ZW&"IO UPDATED A.K a. Maurie P.Amaud G.Mauris ~w11o11or in por1 ....-ror.,,,.p._w111oo.1111opt1or- "A" · BOTRlao~ - 2/3 ~ ~ 1A 3UJ1110 Fi'"1 leaJo A.K G. Maurie P.Amaud BAN Dl,l'ANflUONGsATDOlHIHAN(ll 1--------,-----..,....-1 pormiHionofHRB. """" ~ ',!! PROJECTDIRECTOR1GIANroe DJAN : CHIEFDESIGNER1CHO lfileM TH1£r ~ : ..,"'..."""'•._""'Pd•..,••,.,,""'"'"'"""'~....,.., DRA'MNGNO.1BANvE so : I~ ~ i ~~ ~ N0?~::~~:01 ~r :ml!!' =~~.: AlainB'9chereau P.Amaud """ 00·m•""'"•"-••o!not..,.,.,..,,..HRB. PIC-TEC-GAD-WVO-J04-18008-B 2A~..___._____.___.________________.....___....___...____._________________.._________________.___________....._________________.______________________..___,
  • 10.
    ~ ; 'l!; 5! nt ~ ~ I i~ ! ti ~ ~ ~ ',!! ~ n0.. DISTANCE FROM Ii!. OF KH~G cAcH TO' L CCIA EXPANSION JOINT KHEBli;N~G ALONG t OF ALIGNMENT cAc CAO E0 KHAC DOC TU'r'i=N OVERALL DEPTH (D) EIO sAu TONG THi; SOFFIT THICKNESS (Ts) CHIEoU DAY CCJAVOM WEB THICKNESS (Tw) CH1£U DAY CCJA BUNG 4500 4500 -PS2 CAST ON GROUND EOC TRi;N ~T BANG SUPPORTED STAGING GIANDAo 3000 SB1' 38500 BLISTER TYPE 5 LISTER TYPE 4 R0L~5 R0L0~4 BLISTER TYPE 1 ROLO~l 1 CAST USING FORM TRAVEL!.ER BY CANTILEVER CONSTRUCTION TECHNIQUE EOC SO' DUNG cAN TRUCDI EONG BANG CONG NGHE THI CONGEOC HANG SECTION A-A MAT CATA-A SCALE : 1/100 ITLE: 11100 SUPPORTED STAGING GIANoAo OF PIER/EXP. JOINT C TRl,J.IMOI NOi EXP ~ OF D HRAGMS/PIER OF PIER/EXP. JOINT ----:c==C_OA_T_IJ_O--G~V_A_~_ITR--=U=-=--___----=--=-=:-----::--::-::-::------::-:==--------:==--=-----=-=-=-'38~5~00~-=-=-=-=-------=-::-::-:----=-=c::------::-:==----::-::c::-::-----::--:-::-::-------:c=::-~OATRl,JJMOINOIEXP 4500 4500 3000 3000 3000 3000 3000 3000 3000 3000 3000 2000 3400 PS2 --------t---------·---- ---- --------- 4500 4500 3000 3000 SB3' SB4' SB5' 3000 3000 3000 PLAN VIEW MAT BANG SCALE : 1/100 IT u; : 11100 ES2 $86' SB7' sea· 3000 3000 3000 3000 2000 5000 ~OF D PHRAGMS/PIER OF PIER/EXP. JOINT ___c_OA_TV_O__G~V_A_v_n_RU~-----------------------~38~5~00~---------------------------0A TRUIMOI NOIEXP 4500 4500 3000 3000 3000 3000 3000 3000 3000 3000 3000 2000 3400 250 PS2 4500 SB5' 3000 SECTION 8-8 MAT CAT B-B "SCALE: 1/100 TYLS: 11100 SB6' 3000 ,, SBT 3000 3000 3000 3400 250 NOTE : CHOY: 1. ALL DIMENSIONS ARE IN Mlll.IMETERS·LEVELS ARE IN METER 1.TATcAcAc KICH THJ'C'.1cEIJ'QC00 BANGMM -CAcCAOEQ EIJ'QCT1NHBANGM o----+----+----------------+-----------4 CLIENT: 1----+---+----------------+----+---+-----1 CHOEIAUTV: II PROJECT IMPLEMENTATION CONSULTANT TV VJN THVC Hl~N DIJ AN SYSTRAS.A ALENMIEITtNBAN~: STATUST1NH T~ : Technical Oeeign PRO.ECTI DI/ A.II : HANOI PILOTUGKT METROLINE Sadlon Nhon- Hrml RalwaySlllllan ru~N WONG sATflO THI THID1£MTP HANOi Eo911 Nh&i-Ge H~ NOi 2A 3MJ.1111 2nd .subml111lon ofl&dinlcaldea9'1 A. K HRB 1C 2Mllltl0 u 1lld 18 ZW&'"IO UPDATED A. K 1--=--F"-==-+"==--------------+-A.'"-'K"'"---+'"'-==-+~=--t HANOI METROPOLITAN RAIL TRANSPORT PROJECT BOARD 1A 3U J1110 Fim-. REVISION DATE SC/ADO! NGA.Y DESCRIPTION NQI DUNGSO'A DOI A. K BAN DI/ANDUONG BAT DO THIHAN(ll DelllNEDl!Y 1111trK£ IH!llEDl!Y 1111.r DESIGNED BYTll1£r~ : FORIMTI~BAN v£ : A. K A1 PROJECT DIRECTORIGIANElOcD./AN : Alain B'9chereau DATEINGAY: 31/01/10 TITlfl~NeANv£ : NHUE RIVER CROSSING WQ'T SONG NHUI;: GAD-SEGMENTARRANGEMENT-3/3 GAD -BO TRI ao~ -313 ORAWINGNO.BAN~ SO : PIC-TEC-GAD-WVO-J04-18009-B 2A
  • 12.
    ~ ~ 'l!; t n I I~ ~ ~ .. ti ~ ~ ~ ',!! ~ n0.. TYPICAL SECTION OF ELASTOMERIC BEARING M~T CAT Dl~N HlNH GOI DO' DAN HOI 4 4 " a "' 4 <l 4 <1 44 ~ -il 4 q .4 4 SCALE: 1/2 Ti' LI;: 112 4 <1 a F .d '14 <lo 4 " 4 4 a" <l 4 <1 4 ', TOP PEDESTAL ElAK£TREN ELASTOMERIC LAYER LOP CAO SU STEEL LAMINATE LOP COT BAN TiiEP 100 4 <l 4 ., 4 <1 4 4., <l " <l .., I Q 4 4 4 Lj . B~~RING 4 PEDESTAL ~RRA~~~ME~T"~BO TR[ DA K~ GOI SCALE: 1/5 Ti'Ll;::1/5 400 THICKNESS= 6+3x4+12x3+6 = 60mm CHIEUDAY TYPICAL SECTION OF ELASTOMERIC BEARING M~T CATDl~N HlNH GOI DO DAN HOI SCALE: 112 Ti' LI;:: 1/2 t----+----+--------------+----t--------t CLIENT: 1 - - - + - - - - + - - - - - - - - - - - - - - + - - - 1 - - - - + - - - - - t CHOf>AUTll: 2A 3MJ.1111 2nd .subml111lon ofl&dinlcaldea9'1 A. K TOP PEDESTAL eAKETR£N BEARING GOI BOTIOM PEDESTAL eAK£ol1<'.11 HRB 1C 01/1Ql10 UPDATED 18 2Ml&"IO Upda111d A. K 1--"'"--t=-'='-+-=-"="'------------+A."'K"'----F~=-+""="'--i HANOI METROPOLITAN RAIL TRANSPORT PROJECT BOARD 1A 23ftlfll10 REVISION DATE SO'ADOI NGA.Y Flrotlmuo DESCRIPTION NQI DUNGSil'AflOI A. K BAN DI/ ANflllONG sATDO Tlll~ NQI DEDEDl!'f 11Elt 400 LONGITUDINAL~. TRl,JC DOC ~IIt!J- • ~~a: z !!;!u Cl)~ ~~ I- PLAN VIEW M~T BA.NG SCALE: 1/5 Ti' Li;:1/5 PROJECT IMPLEMENTATION CONSULTANT lVVAN THIJCHISNDIJ AN SYSTRAS.A PROJECT DIRECTORIGIAMllOcDlfAN: Alain B6chereau r----·---·---·---·---------r-+-T- - - - =·~---·---1 ! I TOP PEDESTAL ELASTOMERIC BEARING 1 1 I DAKE T~~~ ~cAuCAO SU I I I lilj_.., .•• ( " ~' •·1 jl I I I OJTOM PEDESTALf •: • t .·. .· I~ DlfOI "~: • ":, r; ~.'«.•~. ~ I I~ 300 J500 I I I I I I I I I I I I I I II ! I I I I I '----------------------- - ---- - -----, I I I I I _jI L_JPP PEDESTAL ELASTOMERIC BEARING j uA-K~.. •'VI / GOl-cAtJ"C::-st:J 1 _ _ __.__ ___,le- ~ ~ I ·..-- ';:.I I I /f------'°-t+-ll.'. ....'. .-· ....... ,__.-i~_·- --+--jl I '··· ' . . . d-2 ,___ _ _ ____, '"!- 4 =...... -4 ~~ '.l----....-+------+---l I V. '.. _ ~-=TAL I. ___::___._.l__.___I___.___.___.___,___ --- FILENMIEITtN BANvE: DESIGNED BY Tllli;rK£ : A. K SCALElTY L~ : DETAIL 2 CHI Tl~T2 SCALE: 1/10 Ti' LI;:: 1/10 NOTES : ----------------------------~ GHI CHU: 1. SPECIFICATIONS INCLUDING PERMISSIBLE TOLERANCES FOR THE ELATOMERIC BEARINGS 1. CHI DAN K'i' TH~T BAO GOM DUNG SAi CHO PHE'.P CHO cAc G01CAO SU SHALL BE IN ACCORDANCE WITH AASHTO LRFD 2ND EDITION 1998 SE PHA'.I ruAN THO TIEU CH~ AASHTO LRFD PHIEN Bl(N 2 2. THE CONTRATOR SHALL SUBMIT DETAILED METHOD STATEMENTS FOR INSTALLATION AND 2. NHA THAu PHAI Ell; TRINH cAcTHUYET MINH CHI TIET PHllONG PHAP REPLACEABILITY OF THE BEARINGS WHICH SHALL BE CHECKED AND CERTIFIED BY APPROVED LAP ~TVA KHA NANG THAY THE cAc GOI cAu MA SE PHAI EllfQ'C KIEM TRA INDEPENDENT AGENCY BEFORE SUBMITIING TO THE ENGINEER APPROVAL VA xAc NH~ BOI MOT caQUAN El()C ~p ElA Ell/Q'C PHE DUYl;T 3. BEARING SHALL BE HANDLED CAREFULLY. rT SHALL BE PROTECTED FROM BRIGHT SUN LIGHT 3. GOI cAu PHAI Ell/Q'C THAO TAc cAN ~N. GOI cAu PHAI EllfQ'C BAf) vs KHOI ANH sANG GAT cOA PMT TROI AND EXTREME COLD. IT SHALL BE STORED NEATLY UNDER COVER TILL INSTALLATION VA KHI HAU auA ~NH. G01 cAu PHAI ElllQ'C LllU GIO' 51'.CH SE TRONG VO BOC CHO ElEN KHI LAP ~T 4. CONCRETE GRADE FOR TOP PEDESTAL I BOTIOM PEDESTAL: fc=60 Mpa (CYLINDRICAL) 4. Qlip BE TONG ElOI Vdl BAN W.T ElA KE TREN I ElA KE Dl!Ol l'c=EIO Mpa (MAU TRU) STAnJST]NHm.,NG: Technical Deeign PROJECTIDV' AN : HANOI PILOTLIGHT METROLINE Sec11on Nhon· Hanoi Rallway S1allon TIJY~N ElUONG sAT ElO THI THI EllBol lP HANQI E>ofn Prin· Ga HtNOi FORIMTI KHOBAN'/£: DATEINGAY: 23/06/10 TTl1.El'TtNBANvE: NHUE RIVER CROSSING VU'Q'T SONG NHUI;:A1 CHECl<ED BYsoAT: n.~ •-.-.i """"" "" _""_,,_,.,._ __. ELASTOMERIC BEARING GOI c:AU CAO SU G. Mauris in wholeoti'IP1rt or ul9dfor1nyprup(*witto.rtlhlpriotwrltln 1-----....,..--,......,---1 permillionof HRB. CHIEFDESIGNERCH) NHl('M THI~K£ : Mn .. n0y "'°""°"""- w...,.-.i....,"""""""""'m0t...,,..,P.Arnaud .... ~ ma -o..,..,ID"llt'*" *.., ""' """· DRAWINGNO,BAN vESO: PIC-TEC-GAD-WVO-J04-18152-B 2A
  • 13.
    ~ 'I' ';i; l!; fij nt ~~ I i ~ ! ti ~ ~ ~ ',!! ~ n0.. PLAIN CEMENT CONCRETE MORTAR WAPCC 4141 4141 2933 ELEVATION VIEW MAT DUNG SCALE: 1f.25 ij 1•:1/25 PLAN VIEW A-A MAT ~~t!~12~-A ij I. :1/25 CLIENT: IIt---+---+---------------+-----1-----11-------1 CHOEIAUnr: , 2A 3CW4/11 2nd aubmi11ion oflechnicaldllil9iun 1D 01/1Ql10 Updatlld t---+----+---------------+-----1-----11-------1 HRB 1C 2Mllltl0 u 1lld 18 ZW&"IO UPDATED A. K . Arnaud t-;;.;;..--t=~;..:_+--""'====--------------4"A.::..:K::..__--f=::..::::::::...+.~Amaud=~ HANOI METROPOLITAN RAIL TRANSPORT PROJECT BOARD PROJECT IMPLEMENTATION CONSULTANT TU VJN THVC HleN DIJ AN SYSTRAS.A 1A 3U J1110 Fim-. PROJECT DIRECTORIGIANElOcD./AN : A. K .Arnaud BAN DI/ANDUONG BAT DO lHIHAN(ll DelllNEDl!Y IHlllEIJl!Y CllJEFOFDBDREVISION DATE DESCRIPTION SC/ADO! NGA.Y NQI DUNGSO'A DOI Alain B'9chereau1111tr1E 1111.r C1!lNllillnETIE DRAINAGE SPOU MANG TiiU NlJO'c PLAIN CEMENT CONCRETE MORTAR VfJAPCC ALENMIEITtN BAN'IE: DESIGNED BYTll1£r~ : AK FORIMTI~BAN v£ : A1 STATUSlT1NH T~ : Technical Deeign DATEINGAY: 31/01110 Cl£Cl<EDBYsoAT : n.~•-'11 """"" '" _""_,,_,.,._ __,G. Mauris ~ whol1 or in port<r .-for anyp,_ w111oo.1 111o pr1or- l-------:--...,......,....-1 perm~~dHRB. CHIEFDESIGNERI CHONHleM TH1£r ~ : ..."'. ..""'"• ._ ph6pd . .... . ,.,, '""hlm ' "'"· ~........ P. Arnaud """bO,m•""'"•"-••<Diot...,..,..,,..HRB. SCALE: 1f.25 ij I' :1125 PRO.ECTI DI/ AN : HANOI PILOTUGKT METROLINE Sadlon Nhon- Hrml RalwaySlllllan nJ~N WONG sAT00 THI THIDlt:MTP HANOi Eo911 Nh&i-Ge H~ NOi TITlflrtNBANv£: NHUE RIVER CROSSING WQ'T SONG NHUI;: DRA'MNGNO.BAN'IE SO : PIER CAPS - P151 - DRAINAGE MO TRl,J - P151 - THOAT NU'O'c PIC-TEC-GAD-WVO-J04-18251-B 2A
  • 14.
    ~ ~ 'l!; fij nt ~ ~ I i~ ! ti ~~ ~ ',!! ~ n0.. PLAIN CEMENT CONCRETE MORTAR WAPCC 4141 ELEVATION VIEW MAT DUNG SCALE: 1f.25 ij 1•:1/25 PLAN VIEW A-A MAT ~~t!~12~-A ij I. :1/25 CLIENT: IIt---+---+---------------+-----1-----11------1 CHOEIAUnr: , 2A 3CW4/11 2nd aubmi11ion oflechnicaldllil9iun 1D 01/1Ql10 Updatlld t---+----+---------------+-----1-----11--------1 HRB 1C 2Mllltl0 u 1lld 18 ZW&"IO UPDATED A.K . Arnaud t-;;.;;..--t=~;..:_+--""'====--------------4"A.::..:K::..__-f=::..::::::::...+_~Amaud=~ HANOI METROPOLITAN RAIL TRANSPORT PROJECT BOARD PROJECT IMPLEMENTATION CONSULTANT TU VJN THVC HleN DIJ AN SYSTRAS.A 1A 3UJ1110 Fim-. PROJECT DIRECTORIGIANElOcD./AN : A. K .Arnaud BAN DI/ANDUONG sATDO lHIHAN(ll DelllNEDl!Y IHlllEIJl!Y CllJEFOFDBDREVISION DATE DESCRIPTION SC/ADO! NGA.Y NQI DUNG SO'A DOI Alain B'9chereau1111tr1E 1111.r C1!lNllillnETIE DRAINAGE SPOU MANG TiiU NlJO'c PLAIN CEMENT CONCRETE MORTAR VfJAPCC ALENMIEITtN BAN'IE: DESIGNED BYTll1£r~ : AK FORIMTI~BAN v£ : A1 STATUSlT1NH T~: Technical Deeign DATEINGAY: 31/01110 Cl£Cl<EDBYsoAT : n.~•-'11"""""'"_""_,,_,.,._ __,G. Mauris ~ whol1or in port<r.-foranyp,_w111oo.1111opr1or- l-------:--...,......,....-1 perm~~dHRB. CHIEFDESIGNERI CHONHleM TH1£r ~ : ..."'. ..""'"• ._ ph6pd . .... . ,.,, ""'hlm ' "'"· ~........ P. Arnaud """bO,m•""'"•"-••<Diot...,..,..,,..HRB. SCALE: 1f.25 ij I' :1125 PRO.ECTI DI/ AN : HANOI PILOTUGKT METROLINE Sadlon Nhon- Hrml RalwaySlllllan nJ~N WONG sAT00 THI THIDlt:MTP HANOi Eo911 Nh&i-Ge H~ NOi TITlflrtNBANv£: NHUE RIVER CROSSING WQ'T SONG NHUI;: DRA'MNGNO.BAN'IE SO : PIER CAPS - P154 - DRAINAGE M01Rl,J - P154 - THOAT NU'O'c PIC-TEC-GAD-WVO-J04-18253-B 2A
  • 15.
    ~ ~ ii! t I~0.. HAND RAIL SUPPORTATSAME COT ElO'TAYVIN LOCATION AS VERTICAL I COLUMNS TAI CONG VI TRI VOi COT IElUNG LIGHT PARAPET LAN CAN NH ALUMINUM SHEET TAMNHOM r-----l I I I I I I I I I I I I --1------- 1 - 1 I I I I I 70 I I I I I DETAILA ;-- ----- CHI Tie.TA Kinematic envelope- Straight alignment E>llO'ng bao d{mg - Trin d11c7ng thang -~--Y- Q~IW~~ ,/,/ t'>111'.1ng bao tlfih cua than xii-... / / ', / / / ',, / / ',/ ~ I ~ I I I I I I I I 5540 I I I I 2590 I 4635 : I 1---------------1---------------~ I I '-, I _ ....// I I I I I I I I I I I ALUMINIUM SHEET BOTTOM TO / .1..1. TAM NHOM DAY ~APPROX. 20mm GAP BE ALIGNED ALL OVER THE BRIDGE KHOANG HOxAP XI 20mm 5£ DU'Q'C D1£U CHINH DOC THEO cAU I I I I x I I I I I I I I I I SECTION 2-2 MAT CAT 2-2 'l'i n~ ~ ~ .s ~ "'!! ~ !ii~ i ~ B 10-15mm THK. STIFFENER Sl!ON TANG Cl!ONG DAY 10-15mm 5mm T K. MS CHEQUERED PLATE TAM K£ 0 VUONG DAY 5MM I I BANGTHEP 1-12 PE8239 1000 !Hi=~====;;;=:¥ TH P 1-12 (LOAI 8239) @1000 4 BANGTHEP U- 6.5h E 8248 4 THe.P U - 6.5h (LOA! 8248) -A-APPROX. 20mm GAP KHOANG HOxAP XI 20mm DETAIL-A CHI Tl~T -ASCALE: 1120 Tl LI;: 1/20 t----+---t----------------+----+-----t>------< CLIENT: 1----+---1----------------+----+-----11------1 CH09AUT~ 2A 3MJ.1111 2nd .subml111lon ofl&dinlcaldea9'1 A. K HRB " SCALE : 1/20 Tl LI;: 1/20 II PROJECT IMPLEMENTATION CONSULTANT TV VNI THIJC HleN DIJ NI SYSTRAS.A 1C 01/1Ql10 u 1lld 18 21m11110 UPDATED A. K 1--"'---+"'~""-+-=="--------------+-..._""K'----F'-'==--+'~=--i HANOI METROPOLITAN RAIL TRANSPORT PROJECT BOARD 1A 31m1110 Fim-. REVISION DATE DESCRIPTION SO'AIJOi NGAY NQI DUNG Sll'A001 PROJECTOllECTORIGIAMllOCD1Jm: Alain B6chereau ..._ K - BAN DI/ANflOONG sAT DO lHI HA.NQI DEDElll!Y omEJJl!Y a!IEFCFDEID 11Elt OT llllNIOTIE!t I I FILENMIETtN BANvE: DEQEDBYTllli;r~: A. K CHECKED BYsoAT : A. Mhedden STANDARD LENGTH FOR A TYPICAL PANEL FOR A SEGMENT OF 3M CH1eu DAI Tieu CHUAN CHO 1ElO~ El1£N HINH CHO Elc:'.>T DAM 3M FOR SPECIAL SEGMENTS, JOINT LOCATION SHOULD BE ADAPTED a01 vOI ac:'.>T a~c Bli;T, v1 TRI M01 N01 caTH£ a1eu cHlNH CHO PHU HO'P 3000 2990 495 1000 1000 495 ----,,---------,,---------,,---- I I I ---- rT _________ TT --------- T~ ---- 1 I I I I I I I I I I I ELEVATION VIEW 1-1 MAT E>O'NG 1-1" SCALE : 1/20 Tl LI;: 1/20 I I NOTES : ~~~~~~~~~~~~~~~~~~~~~~~~~~~~~~~~~~~~~ GHI CHU : 1. BEAM AND BOLTS FROM STEEL CCT34 (TCXDVN 338:2005) YIELD STRENGTH: FY=210 MPA. 1. DAM VA BU LONG DONG TH£P CCT34 (TCXDVN 338:2005) GIOI ~CHAY Fy=210MPA 2. FIXING ARRANGEMENT FOR ALUMINIUM SHEETS SHOULD BE DONE ACCORDING TO SUPPLIER'S REQUIREMENTS. 2. Be:'.> TRI Lle.N K£T cAc TAM NHOM CAN TUAN THU THEO y£u cAu COA NHA CUNG cAP FORIMTIKHOBANv£: A1 STA1IS T1NH~ : Technical Design DAlEINGAY: 31/01110 ThLldlawl1111rru11tncti......-mi..t,~i:r~~ ii whole or in part orUlldfor anr p.,.,._wthcU lh9pricrwrillln permlulondHRB. PRO..ECTDlfm: HANOI PILOTLIGHT METRO LINE Sadlon Nhon-Hanol RallwaySllltlon TIMN EllJONG sATElOTHI THIEll~ TP HANOi Elofn Nh&!·Ga Hl NOi Tm.£IDleANVE: NHUE RIVER CROSSING DECK- PARAPET-TYPICAL - SECTION & ELEVATION CHIEFDESIGNERI CHOttileM THla Kt : ..,,..n>y_..,.,._.....,""""""""""'"-mOliHn'-Y lo6n~mO-..,.,..,~f~VOnb6ncOoHRB. DRAWINGNO.BANv£SO : A. Bechereau PIC-TEC-GAD-WVO-J04-18800-B 2A
  • 16.
    ~ ~ :l: 'ii l!; t n~~ I i ~ ! ti ~~ ~ ",!! ~ nIL 12000 :;AST-IN-SITU CONCRETE PLINTH THICKNESS= 1n~mm CHOI B~ TONG 00 T~ CHO DAY= 100MM 150121 DRAINAGE SPOUT 12000 PIPE HANGER @2000c/c ;~-~- JL 7 MANGTHUNll0C0150 .~ V SLOPE1.7% "'bQ DOC- 1.1 % - V / / ~ ·• ' ~//////////'.! I I I I I I I I I I I I I I I I t::-.J _ J -~ _j ~ 2500 DRAINAGE PIPE VV ONG THoAT Nl!Oc 2500 I I I I I I I I I I I I I I I I '--P ~20D121 DRAINAGE PIPE ONG THoAT Nl!Oc 2000J SECTION A-A MAT CATA-A °SCALE : 11100 TYLI;:: 1/100 12000 ~~ ·~ 3000 g ~ ::c .0 ~ ~ c ~ IL t-- 0 < 15000 150121 DRAINAGE SPOUT u-J '5 150121 DRAINAGE SF / MANGniUNl!Oc 0150 _/ MANGniUNllOC 015 SLOF eooo ~ C//'.'.~~i//~ ///, I I n I n ~~~~/////Jr/ // l/ / / / ir/ /// 1000 DRAINAGE PIPE / 1000 DRAINAGE PIPE ONG niOAT Nlf0C 1000 ONG THoAT Nlf0C 1000 2500 DRAINAGE PIPE ONG THoAT Nl!Oc 2500 . ~ ---- ~~~ ----- !- - -~.:_~.= , . ' I ~ I ~ I ~ 1''-,, I ''- I '-'- I ''- ''·I ' ' I '-:::: } OF PIERI EXP. JOINT CAST-IN-SITU CONCRETE PLINTH THICKNESS = 100mm fOF DIAPHRAGMS PIER 0ATRl,J/MOI NOi GIAN Ny KHO! B~ TONG e>OTAI CHO DAY = 100MM Q.. / · fJA TRl,J Tl!O'NG CHAN NGAM I I I I I I I I I I I I I I I I I DETAIL3 CHIT1e'T3 (j; OF DECK I ALIGNMENT© ClJABAN f.MTcAuiTuv£N · t----+---t----------------+----+-----t>-------i CLIENT: 1----+---t----------------+----1-----11-------1 CHOEIAUnr: 2A 3MJ.1111 2nd .subml111lon ofl&dinlcaldea9'1 A. K G. Maurte P. Amaud 1C 01/ 1Ql10 Uodatlld G. Maurte P. Amaud 18 2MJ&"IO Updatlld G.Maurie P,Amaud 1A 23ftlfll10 Fim-. G.Maurie P.Amaud REVISION DATE DESCRIPTION IHlllEDllf CllJEFOFDBD SC/ADO! NGA.Y NQI DUNG SO'A DOI 1111.r C1!lN!lillnETIE HRB II PLAN VIEW MAT BANG s·cALE: 11100 TYLI;:: 11100 PROJECT IMPLEMENTATION CONSULTANT TV VJN THVCHleN DIJ AN SYSTRAS.A PROJECT DIRECTORIGIANElOcD./AN : Alain B'9chereau ALENMIEITtN BAN'IE: DESIGNED BYTll1£r~ : FORIMTI~BAN v£ : A. K A1 I STATUSlT1NHT~: BASIC DESIGN llilET K£ ca sa DATEINGAY: 23/06110 PRO.ECTI DI/ AN : HANOI PILOTUGKT METROLINE Sadlon Nhon- Hrml RalwaySlllllan ru~N WONG sAT00 THI THIDlt:MTP HANOi Eo911 Nh&i-Ge H~ NOi TITlfl~NBANv£ : NHUE RIVER CROSSING WQ'T SONG NHUI;: DECK - DRAINAGE PRINCIPLE - MISCELLANEOUS -1 / 4 BAN ~TcAU - NGUY~N L~THOATNIJOC - cAC BO P~N PHl,JTRO' - 14 DRA'MNGNO.BANv£ so: IPIC-TEC-GAD-WVO-J04-18810-B 2A
  • 17.
    ~Ii A ~~J ~z z l/l.Z ~i~g 3000 15000 17000 15000 15000 ~ ~ ~ i ~ ~ ::c ~ ~ tooc :::> c itu.. I!: u.. too 0 '( 1500 DRAINAGE SPOUT o ~ I c;Jg 1500 DRAINAGE SPOUT PIPE HANGER @2000c/c / "'"'"""'°"""' ~ ~o /"'"'"""~~M ~ /~TIE<>""'......SLOPE 2.4% bO DOC-2.4% ~~~~ I// ,f / A I II I I II • I ID I I I n ~'l/'. V/,0//-1 1/// I I I I I I I ,. ' (/ / I/ / ~~- %%% ///// JI /// '//// ,11, / / / / _L. ////Jt/ // ~//A'.7/7/ 200121 DRAINAGE PIPE 1000 DRAINAGE PIPE / 1000 DI ONG TliOAT Nl/OC1000 ONGTliC :PIPE - -- 1000 DRAINAGE PIPE ONG llioAT Nl!O'c 200121 : 1000 ONG TliOAT Nl/OC 1000 I _j Q._ 2500 DRAINAGE PIPE / ONGTHoAT NllOC250121 I I I- ------- - -1- -~---------- ~~----~----~----~r==~----~----~----~----------------- --~----~----iT - -- T~'i/ // r- , / / - ·.:: '-'-'-/ ' // / ,//'- ,/ "!/'- ' /// s/ / ,, JZ/ I / . ., , . . I . ' 1 /_.),,,, r-___.:::--"- ~ I ~ I 1'' I / j'/ 1,,I I ,, / / I I I ,, / / I I I ,, CROSSING WITH NHUE RIVER / / I,, / / I I I I ,, / / I I II I ,, Cat qua song Nhu~ / / I,, / / ~ ~ I I 'r -~:--, ,,---,;/ I Lk LkI I I I '" _,...C:] I I I I "==' I" " / / "==' I "" / / I I I "' V / I ~ I I J ':::_, / V I/ / I I I "" _,. _,. I I I I I '~~----------------------------- ----------------------------- ~~/ 1 I I I I I I I I I SECTl~N A-A I I I I I I I I I I M,;T C TA-A I I I I I I I I I I SCALE : 1/100 I I I I I TYL!;: 1/100 I I I I I I I I I I I I fOF DIAPHRAGMS PIER I I I I I fOF DIAPHRAGMS OA TRU TLrONG CHAN NGAM I I I I I OATRU Tl/ONGCHA ------ ------ >-------- ------ ------r-------- ------ ------ ------ ~(~ ----- ------ ------ too------- ------ ------ ------- ------ ------ -------?s2r-----------------11---------- ~PS1 SA1 SA2 SA3 SA4 SA5 SAB SA7 SAS SA9 ~ SB9 sea SB7 SB6 SB5 SB4 SB3 SB2 SB1 1- - - - - - - ------ ------ 1---- - - - ------ ------ // / / ---- ------- ------ ------ - ------ ------ ------- ~:======= ---- _] ~ - - --3 ,__ ~- - -- - ~~ - - - - ---c ---,[ _ -~ --------- - --------_, 1S00DRAINA 3ESPOUT ~ -------- ------ r--------------- -I - - - - - - - - ~-/ ~ ANG THU N-lfO ~ 121150 ------ ------ 7 /'/: ---- ------ ------- ------ ------ ------ --- - ---------- ------ --------- ---------, -- ,-- - -- I IJ I ct ~ ~ I I I -4~- · - - - · -- · -- · -- - - - - · ·- - 1 /I'·.,,,ni,.J. DRAINAGE '"t 200121 D~J ~~ I I:>IPE INAGEPIPE --------f~i'IG"1tlOATNU'O'e2500----- r----------oNGllleA~NVO& 2000-- ------ ------ 1------- ------ ------ ------ ------ ------- ------ ------ ------ --- - ---------- ------ ---------r--~------ ____:=Li .------~ L________, c -~ --------1--------- f'- - - - ,__ ______1---------- --- - -- --- 1--- ---- - - --- - --- --- --- - - - - - --- - - ----- - - ----- - ------ ----- --- --- - _ _ _ .J _________}_________ -------- ---------- ------ ------ >-------- ------ ------1-------- ------ ------ ------ ~ ------ ------ 1-------- ------ ------ ------- ------ ------ ---------- --------- --------i---------------- ------ >-------- ------ ------r-------- ------ ------ ------- ------- ------ ------ 1-------- ------ ------ ------- ------ ------ ----------i--------- I I I PLAN VIEW MAT BANG SCALE : 1/100 TYLI;: 1/100 CLIENT: •PROJECT IMPLEMENTATION CONSULTANT FILE NAME1TENBAH~ : SCALE TY~ : STA1US11Ni~ : PROJECTIll/AN: HANOIPILOT LIGHT MEIRO LINE SectionNhon -Hanel RalwaySlallon ' CHO£lAU11: Tl! VANllil/C HI~ DVAN PIC-TEC4AD-WYO-JOl-11111-B_2A.DW'a - BASIC DESIGN TUruO~G sAT0011-llTHIOl~M TPHANQI flOfjll Nh6n -Ga HA NOiI'; SYSTRAS.A TH1£TK£ caSO u DESIGNEDBYlHI~ IQ;: FORMAT KHO BAH~: DAlENGAY: TTll.E~NBAH~: HRB NHUE RIVER CROSSING ~~ A.K A1 23106110 WQ'T SONG NHue ~~ 2A 31l/04111 2nd 1ubmllillon aftachnlcal dalllgn A.K tl. Mauril P. Amaud ~ il 1C 01110/10 Uodatad A.K tl. Mauril P. Amaud CHECl<EDBYSoAT: Tiii• dnrwtng mu.tnot b9ellhari..ii.t.mp.dorallwwtm ~ DECK - DRAINAGE PRINCIPLE - MISCELLANEOUS - 2 / 4 fl. Mauril P, Amaud HANOI llEIROPOUTAN RAIL TRANSPORT PROJECT BOARD ill~ 18 2Ml8110 Updatad A.K G. Mauris in whol9orin .ior UHd 1or1r1rprupo19witloutl'll piol"writlln BAN ~T cAU - NGUY~N TAC THOAT NllO'c- NHO'NG NGUY~N TAC Kl-~ 1A 23/!l6110 Firwt.l11ue A.K P. Mauril P. Amaud BAN DI/AN OWNG BAT00 THI HA NQI pwmillioflofHRB. I'!!I REVISION 0.-.lE DESCRIPTION -51' -51' O&CFIHCll PROJECTDIRECTORGIAMllOcDI/AN: CHIEF DESIGNERCHONHleMTHI~ ia;: Bin vi ntrkhllng cruqc ph6p •ll dlil'la dwt mQI him llOc:,. ml)I:.,Mr DRAWING NO. BAH~ SO: IB SOADOI NG/.Y NQI DUNG80'ADOI lHl!TI! !lli.T Oll1t111M1HI!Tll£ Alain B6chereau P.Arnaud -oo.m•""""•"-••""""''*'""""llinalllHRB. PIC-TEC-GAD-WVO-J04-18811-B 2A
  • 18.
    ~;!!j :l: 'ii I'; ~ u~~ I ~~ ~ il ill~ I'!!I ~B... 2A 31l/04111 2nd 1ubmllillon aftachnlcal dalllgn 1C 01110/10 u - ~INAGEPIPE 'TNOOCIODl/J PS2 12000 1000 DRAINAGE PIPE ONG THOAT NLJOC 10Dl/J ~OF DIAPHRAGMS PIER ~OA TRU TIO'NG CHAN NGAM SB1' r-----~ ---------t--------- ~- ---------r--------- HRB SB2' SB3' 18 2Ml8110 Updatad 1A 23/!l6110 Firwt.l11ue A. K . Amoud HANOI llEIROPOUTAN RAIL TRANSPORT PROJECT BOARD t----+----l---'--------------4-A.-K----4----+-.-Am-•-ud----l BAN DIJ'AN OWNG BAT00 THI HA NQI REVISION 0.-.lE DESCRIPTION -51' -51' O&CFIHCll SOADOI NG/.Y NQI DUNG80'ADOI lHl!TI! !lli.T OilltllOM1111!111£ 12000 1500 DRAINAGE SPOUT MANG THU NllO'c 0150 SECTION A-A MAT CATA-A °SCALE : 1/100 12000 T-IN-SITU CONCRETE PLINTH THICKNESS= 100 1500 DRAINAGE SPOUT MANG THU NLJOC "150 2000 DRAINAGE PIPE ONGllioAT NLJOC2000 ~ ~0 z..., '!!i 2500 I I I I I I I I I . I w • Cl 0:: w ii: z I I I I I I I I I . I w TYLS: 1110wT-IN-SITU CONCRETE PLINTH THICKNESS= 100mm KHO! B~ TONGE>O TAI CHO DAY = IOOMM SB4' SB5' PLAN VIEW MAT BANG SCALE : 1/100 TYLS: 1/100 SB6' PROJECT IMPLEMENTATION CONSULTANT TlfVANTHl/CHI~ OVAii SYSTRAS.A PROJECTDIRECTORGIAMllOcDI/AN: Alain B6chereau SB7' SB8' SB9' FILE NAME1TENBAH~ : PIC-TEC4AD-WYO-JOl-1111H_2A.DW'a DESIGNEDBYlHI~ l(J;: A.K SCALE TY~ : FORMAT KHO BAH~: A1 STAlUSllNi~ : BASIC DESIGN TH1£T K£ caSO DAlENGAY: 23/06/10 CHECl<EDBYSoAT: .,,.0 0...,ngm..tnotboo1.,.,__,__.,.......___. G. Mauris inwhol9orin.ior UHd1or1r1rprupo19witloutl'llpiorwritlln 1---~~~~~~~~--I l)Wl'rilliondH~. CHIEF DESIGNERCHONHteMTHI~~: Mn "'"*'""'"•._ph6p .~ ""'" ouot""""'"'"'""'mQI "'*1.., P. Arnaud .,..oo,m•""'"•"-••""'"''*'""""...,*"RB. PROJECTIll/AN: HANOI PILOT LIGHT METRO LINE SectionNhon -Hanel RalwaySlallon TUru O~G sAT00THITHIOl~M TPHANQI flOfjll Nh6n -Ga HA NOi TTll.E~NBAH~: NHUE RIVER CROSSING WQ'T SONG NHue DECK - DRAINAGE PRINCIPLE - MISCELLANEOUS - 3 / 4 BAN ~T cAU - NGUY~N TAC THOAT NllO'c- NHO'NG NGUY~N TAC DRAWING NO.BAH~ SO: PIC-TEC-GAD-WVO-J04-18812-B 2A
  • 19.
    ~;!!j ~ 'ii I'; ~ u~~ I ~~ ~ il ill~ I'!!I ~B... 2A 31l/04111 1C 01110/10 SLOPE 1'*t eoooc=1 % I I SLOPE 1% EQD0C=1% HI I PIPE HANGER cAITRE00NG 2000 DRAINAGE PIPE I 1500 DRAINAGE PIPE ) ONG THoAT NU'O'c 1501'1l 26 ONG TlioAT NfO'c 2001'1l CHITIET-1 ~ -1-~~DETAIL - 1 SECTION B-B MAT CAT B-B SCALE: 1(.25 TY LS: 1/25 3THK. PLAIN WASHER 3THK. VONG El;:M PHANG TOP OF DECK ---r-,,rl..,,,.,,....,..,.....,,;,.--.----" EINH BAN ~T cAU 11.50HOLES FOR 100 BOL cAc LO 11.51'11001 VOi BU LONG 10l'll 2nd 1ubmllillon aftachnlcal dalllgn u - 2 NOS. M10 NUTS TO BE ASSEMBLED ON 2EINH 0c M1DflllQ'C LAP ~T VAo ABOLT AND THEN WELDED TOGETHER MOT BU LONGVA SAU EOElfO'C HAN VO'I NHAU TO ENSURE THE CONTINUITY OF THREADS. EE flAM BAO SI/ LIEN Tl,JC cOA REN. 20x20x 3 PLATE DETAIL-2 CHI Tl~T-2 SCALE: 1/1 TYL!;: 1/1 HRB 18 2Ml8110 Updatad 1A 23/!l6110 Firwt.l11ue A. K . Amoud HANOI llEIROPOUTAN RAIL TRANSPORT PROJECT BOARD t-----+----l----'--------------4-A..-K---4-----+-.-Am-•-ud----l BAN DI/AN OWNG BAT00 THI HA NQI REVISION 0.-.lE DESCRIPTION -51' -51' O&CFIHCll SOADOI NG/.Y NQI DUNG80'ADOI lHl!TI! !lli.T OilltllOM1Hl!T11£ [IT1jI DETAIL- 3 CHI Tli;T- 3 SCALE: 1f.25 TI' LI; : 1125 PROJECT IMPLEMENTATION CONSULTANT Tl! VANllil/C HI~ DVAN SYSTRAS.A PROJECTDIRECTOR GIAM llOcDI/AN: Alain B6chereau -- 53 ·~ 2-' 2 2' 2' 2 2 • ,~ ~ ,~ 1 I "' "c ~ Bmm THK.00 ~ IJ r--- "- [... ~ I-- i. $ ~ DRAIN PIPE 1500c <O I--~ • 50 x 3mm THK. GALVANIZED MA KEM DAY• 50x 3mm ADJUSTABLE ANCHOR STRAP ElAI NEOfl1£U CHINH flllO'C WITH 12mm 0 HILTI EXPANSION VOi GIAN NO HILTI 12mmrzJ BOLTS OR SIMILAR APPROVED • • ONG TlioAT NllO'C I'll150 I BO I 1BO I BO I 300 SECTION C-C MATCATC-C0 SCALE: 1/5 TY i._e:1/5 100 BOLTS UL0NG100 DRAINAGE SPOUTAND COLLECTION PIT ASSEMBLY SHALL MANG THoAT NllO'cVA BO GIENG TliU NU'O'c SE BE FABRICATED FROM MILD STEEL AND AFTER FABRICATION EU'O'C TAO RA ID Tli£P NON VASAU KHICHE: TAO THE COMPLETE ASSEMBLY EXCEPT GRATING SHALL BE BO aAYEO TRCf LOOI SEEllO'C GIVEN A HOT DIPPED GALVANIZED COATING. M.S. FLATS 12X25 DETAIL -1 CHI Tli;T-1 SCALE: 115 TY Ll;:1/5 DET~CHIT1£T2 6mm THK. DRAINAGE SPOUT SHALL BE PLACED IN TRUE LINE MANG llioAT NllO'c SEEllQ"C ~T TRONG E0NG El/UNG AND LEVEL BEFORE CONCRETING THE SEGMENT VA CAO eQ TRl.J¢'C KHI00 BE TONGflWIN 200mm 0 RUNNER PIPE ONG DAN 200mm rzJ H FILE NAME1TENBAH~: SCALE TY ~ : STAlUSllNi~ : PROJECT OilAN: HANOI PILOT LIGHT METRO LINE SectionNhon -Hanel RalwaySlallon PIC-TEC4AD-WYO-JOl-1111:Ml_2A.DW'a BASIC DESIGN TH1£T K£ caSO TUru O~G sAT00THITHIOIEM TPHANQI flOfjll Nh6n-Ga HA NOi DESIGNEDBYlHI~ IQ;: A. K FORMAT KHO BAHvE: A1 DAlENGAY: 23/06110 CHECl<EDBYSoAT: .,,.00...,ngm..ino1"""'"'••-.-...-..__. G. Mauris inwhol9orin.ior UHd1or1r1rprupo19witloutl'llpiorwritlln 1----------~ l)Wl'rilliondH~. CHIEF DESIGNERCHONHleMTHI~ia;: Mn "'"*'""'"•._p116p .~ ""'" ouot""""'"'"'""'mQl "'*1.., P. Arnaud .,..oo,m•'"""•"-••o!lnat*'a'*''*'*"RB. TTll.E ~NBAH~ : NHUE RIVER CROSSING WQ'T SONG NHue DECK - DRAINAGE PRINCIPLE - MISCELLANEOUS - 4 / 4 BAN ~T cAU - NGUY~N TAC TIHOAT NllO'c- NHO'NG NGUY~N TAC DRAWING NO.BAH~ SO: PIC-TEC-GAD-WVO-J04-18813-B 2A c- /4
  • 21.
    ~ ~ I!! 5i ~ t uiw .!: F % ;!I $i !;l 8 uii: B P151 3" 2111W11 2A 30KM/11 10 D111W'ID Updatlld DETAIL-1 CHI Tl~T 1 TRANSITION SLAB REMOVED BAN QUA ElO DO BO FRAME KHUNG ~======;:::::====~ I~ - 13000 ~I A.K 2nd •ubmll1lon oflllchnlcal daolgn A. K UPDATED A.K //, DETAIL-1 ______ J CHITl!:T1 STAGE2 :- CROSSING WITH NHUE RIVER CM qua sOng Nhue GIAI oo~ 2 :-_PIER SEGMENT PS1 & PS2 CASTED ON SCAFFOLDINGS. - PHAN ElOAN TRV PS1 & PS2 Ell!O'C aoc TR£N GIAN GIAO. - STRESS CANTILEVER TENDON - cAP O'NG SuAT TRU'O'c CHO PHAN HANG - REMOVE SCAFFOLDING • DO e0 GIAN GIAo STAGE3 :- GIAI00~3:- CROSSING WITH NHUE RIVER CM qua song Nhue - PLACE FORM TRAVELLER IN POSITION FOR CONSTRUCTION OF SEGMENT • ~T VM KHUON DI EJQNG V/.o VJ TRflHI cONollOT DAM SA1 & SA1 ' FOR CANTILEVERS ON PIER P152 SA1 &SA1' CHO DAM TREN TRl,I P152 - PLACE SCAFFOLDING FOR CONSTRUCTION OF LATERAL SPAN UP TO 5.0m -~T GIAN GIAo ll~ lHI c0NG NHIP ~N lOl 5.0m FROM AXIS OF PIER P151 T(f TRl,I COA TRl,I P151 -WHILE BACKFILLING REMOVE LINED EXCAVATION -TRONG KHI LAPaAT DO BOVNI CHONG - REINSTATE TRANSITION SLAB AND ROAD FINISHING - HoAN lRA BAN QuAllO VA HoAN lHll;N lll10NC3 CROSSING WITH NHUE RIVER ci1t qua song Nhue STAGE 4 :- GIAl~4:- HRB - SEGMENT SA1 & SA1' CASTED .IJOT SA11,SA1"a.l.llllc - STRESS CANTILLEVER TENDONS FOR SEGMENT SA1 & SA1' - cANG cAPHANG C1NG SUATTRl10c CHO llOT SA1 & SA1' - MOVE FORM TRAVELLER TO CAST NEXT SEGMENT SA2 ON MAIN CANTILEVER - DI CHIJY£N VAN KHUON DIEJQNG El£ EIOC BOT SA2 T1£P THEO TREii HANG BEN FOR PIER P152 CHOTRl,J 1'152 - MOVE FORM TRAVELLER TO CAST NEXT SEGMENT SA2' ON LATERAL CANTILEVER • DI CHIJY£N VAN KHUON DIEIQNG El£ EIOC llOT 8A2" T1£P THEO TREii NHIP HANG ~N FOR PIER P152 CHO TRl,J 1'152 CROSSING WITH NHUE RIVER Ci1t qua sOng Nhu& •PROJECT IMPLEMENTATION CONSULTANT Tl1 VAN THl,IC HleNDI,/ AN SYSTRAS.A FILE NAA1ElTtN e,1,1/£: PIC-T'EC-GCM-¥1VDJOBD11.flJl',DNG DESIGNED BYTHli;rK£ : A. K 1C ~B/1D 18 2Ml&'ID Updatad A . K 1--;.;;;......p;;;.;;;;;..;.;;.....,_u""PllA=TED;;......_ _ _ _ _ _ _ _ _ _ __._A;;..;.. K;;....__ _.;.;;;;;;;;;;;...-+;.;;.;;;..;;;;;;;...-l HANOI METROPOLITAN RAIL TRANSPORT PROJECT BOARD CHECKED BYSlll.T: G. Maurls 1A 31m1/1D REVISION DATE SLrAOOI Nal.Y F1ro1 - . " ·K BAN DI/AN allONG sA.raO THI HANQI DESCRIPTION NQI DUNGsLrA!lOi IHIHl!BI HIM! CllllClllBI IOI.! PROJECTDIRECTORIGIAMaocDI/AN: CHIEF~IGNERCll) NHleMTH1£r Ke: Alain B~cheraau P.Amaud ,---1 I STAGE 1 :- GIAl~N 1:- - REMOVE EXISTING TRANSITION SLAB (PART) - DO' BO BAN QUA£>0 Hll;N CO (PHAN) - EXECUTE LINED EXCAVATION (CONSTRUCTION DESIGN) - THl,l'C Hlf;N E>AO CO VAN CHONG (THl!:T Ki: THI CONG) - MAXIMUM ALLOWABLE HORIZONTAL DEFORMATION: 100mm - B1£N DANG THEO PHU'ONG NGANG CHO PH£P LON NHAT: 10 - COMPLETE FOUNDATION AND SUBSTRUCTURE - HOAN THANH PHAN MONG VA Ki:T cAU PHAN DOOi /. / // Lcc--m--m1 NOTES:- ~~~~~~~~~~~~~~~~~~~~~~~~~~~~~~~~~~~ GHICHIJ: - THERE SHOULD NOT BE MORE THAN 1 SEGMENT DIFFERENCE BETWEEN BOTH SIDES OF THE CANTILEVER. -XIN LllU YRANG SE CONHlriU HON MOTSii KHAC BiST Vri PHAN ~N GIO'A HAI BEN COA El°"'NElOC HANG - STRESSING CAN BE STARTED ONCE 30 MPA IS ACHIEVED (CYLINDRICAL). - KEOcANGCO THEBAT ElAU KHI ~T ElllQ'C 30 MPA (HINH TRl,J) - MAXIMUM WEIGHT OF FORMTRAVELLER CONSIDERED IS 50T -TRONGLllQ'NGLON NHATCOA XEElOCElU'O'C XEM XET LA 50T SCALETYI.Ii: FORMATKHO BAN VE: A1 STAlUS TfNH~G : Teclmical Design DATEINGAY: 31/01/10 Thil <Rwi'IDmUll:notbe eithlrlOlrled,<q>ied«otl'lll'Wile NP'Odiacl ln wtdea h P11rt orul8dfor•nr prupme wllhoul:.. prlor'Mltsl parmlllllonot HRB. ......My_..,.,._.......ng ..... ..,.. .... _rn(llpMnt.y .... ~ ... - ......... ~t~ YGnb6n cOo HRB. PROJECT DI,/AN: HANOI PILOTLIGHT METRO LINE Sedian Nhon•HantiRailwayS1atial TIJY£NflOONG sAr ElOllilTHIfllEMTP HANQI Elatn N~n · Ga Hi NOi Tm.E TtNllMIVE: NHUE RIVER CROSSING VU'QT SONG NHUI;: DRAl'l1NGNO. BANVESO: CONST METHOD - 1 / 3 PHLIONG PHAP THI CONG - 113 PIC-TEC-GCM-WVO-J04-18011-B 3A
  • 22.
    " ~ ~ I!! 5i ~ t uiw .!: F % ;!I $i !;l 8 uii: B 3A 2A 1D l 1:-r:- :t-r ww I l 1;r;- ;t;1 wUJ 2111W11 30KM/11 D111W"IO 31500 //, //, /// ~ / // Updatlld A.K 2nd •ubmll1lon oflllchnlcal daolgn A. K UPDATED A.K /'. ;...:: ,---1 I Lm--m--m1 HRB STAGE5:- GIAI EOAN 5 :- - SEGMENT SA2 &SA2' CASTED -DOTSA2&SA2' aADOC - STRESS CANTILEVER TENDONS FOR SEGMENTS SA2 & SAZ - cANG cA!> HANG ONG SUAT Tlll10'c CHODOT SA2 & SA2' - MOVE FORM TRAVELLER TO CAST NEXT SEGMENT SA3 ON MAIN CANTILEVER - DICHUYEN VAN KHUON DI DONG De DOCDOT SA311eP THEO1R£N HANG BeN FOR PIER P152 CHOTRl,I P152 - MOVE FORM TRAVELLER TO CAST NEXT SEGMENT SA3' ON LATERAL CANTILEVER - DICHUYEN VAN KHUON DI DONG De DOCDOT SA3'TleP THEOTR£N NHIP HANG B~N FOR PIER P152 CHO TRl,I P152 STAGE6:- GIAl~N8:- CROSSING WITH NHUE RIVER CA! qua sOng Nhue - MAIN & LATERAL CANTILEVER COMPLETE FOR PIER P152 - HoAN THANH NHIP HANl3 l!eN & CHINHCHOlRU P162 - LATERAL SPAN ES1 COMPLETE UP TO 5.0M FROM AXIS OF PIER P151 ON SCAFFOLDING - HoAN THANH NHIP B~N ES1 n'.715.0M WTIM1Rl,I P151 TREON GIAN GIAo - STRESS LAST PAIR OF CANTILEVER TENDONS - cl.NG 1<£0 ~ CUOI CtlA cAccAPc.l.NG HANG - DISMANTLE FORM TRAVELLER FROM CASTED CANTILEVERS OF PIER P152 AND REASSEMBLE TO CAST CANTILEVERS OF PIER P153 - THAo DCIVAN KHUON DIDONG1R£N cAccANH HANGaAOOC C0AlRU P152 VA LAP RAP ~ D~DOC cAccANH HANG COA1RU P153 31500 I I ' STAGE 7 :- GIAI 00.!IN 7 :- CROSSING WITH NHUE RIVER CA! qua song Nhue ·CASTTHE STITCH SEGMENT S1 FOR LATERAL SPAN BETWEEN PIERS P151 &P152 - D0CD0T Hr;JP LONl3 81 CHO cAc NHIP B~N 1310'A cAclRU P151 &P11i2 -STRESS CONTINUITY TENDONS FOR LATERAL SPAN BETWEEN PIERS P151 &P152 ~--~ CROSSING WITH NHUE RIVER CAI qua song Nhut CROSSING WITH NHUE RIVER ,---1 I I I L='=- - _..._ - - = ....,J • PROJECT IMPLEMENTATION CONSULTANT Tl1 VAN THl,IC HleN DI,/ AN SCIJ.fTYI.Ii: STAlUS TfNH~G : PIC-T'EC-GCM-¥1VDJOBD12'8Ji',DNG SYSTRAS.A DESIGNED BYTH1£TK£: A. K FORMATKHO BAN VE: A1 Teclmical Design DAlENGAY: 31/01/10 / /, 31500 PROJECT Ill,/AN: HANOI PILOTLIGHT METRO LINE Sedion Nhon-HantiRailway S1ation TIJY£NflOONG sATElO THITHIfll~M TP HA NQI Elatn N~n · Ga Hi NOi Tm.E~NBANVE : NHUE RIVER CROSSING VU'QT SONG NHUI;: 1C ~8110 18 2Ml&'"ID Updatad A.K 1--=--i;;;=-"--+-"u"'PDA=TED'--- - - - - - - - - - - - 1 ' - A " ".K"----==-.;.;..;;;=---1 HANOI METROPOLITAN RAIL TRANSPORT PROJECT BOARD CHECKED BYSlll.T: G. Maur1s Thil <Rwi'ID mUll:notbe eithlrlOlrled,<q>ied«otl'lll'Wile NP'Odiacl ln wtdeah P11rtorul8dfor •nr prupmewllhoul:.. prlor'Mltsl parmlllllonot HRB. CONST METHOD - 213 PHLIONG PHAP THI CONG - 213 1A 31m1110 REVISION DATE SLrAOOI N(3,y F1ro1 -. ....K BAN DI/AN allONG sA.raO THI HA NQI DESCRIPTION NQI DUNGsLrAfJOI IHIHl!BI' HIM! CllllClllBI' IOI.! PROJECTDIRECTORGIAMaocDI/AN: CHIEF ~IGNERCll) NHleMlll1£rK£: Alain B~cheraau P. Amaud ......My_..,.,._.......ng ..... ..,.. .... _m(llpMnt.y ....~ ...- .........~t~'"""'"""'"""· DRAl'l1NGNO. BANVESO: PIC-TEC-GCM-WVO-J04-18012-B 3A
  • 23.
    ~ ~ I!! 5i ~ t uiw .!: F % ;!I $i !;l 8 uii: B STAGE 9 :- GIAI OOAN 9 :- . - CASTTHE STITCH SEGMENT S2 ON LATERAL SPAN BETWEEN PIERS P153 & P154 - ElOC PHAN E>OAN HQ'P LONG S2 CHO NHIP BeN GiO'A TRl,I P153 & P154. - STRESS CONTINUITY TENDONS FOR LATERAL SPAN BETWEEN PIERS P153 & P154 -TAO liNG SUATBO CAP LleN c~OI VOi NHIP BeN GiO'A cAc TRV P153 & P154 ~~~~~~~~~=Ef==f="9~~~~~~~ ~m-~-~- =--~--~-=--~1 -~-=:±~~~~~~~="=-=~=fm -- ../{/~ I I Lm--m--ro1 CROSSING WITH NHUE RIVER CAt qua song Nhuf STAGE 10 . - MOVE FORM TRAVELLER TO CAST THE STITCH SEGMENT S3 BETWEEN TWO CANTILEVERS OF MAIN SPAN GIAI eo~ 10-,_ -DI CHUY£N VAN KHU<".lN DI El0NG £>£LAP PHAN EloAN HQ'P LONG S3 GiO'A HAI DAM ElO NHIP CHINH. - APPLY LONGITUDINAL JACKING OF 200T ON BOTH CANTILEVERS (RESULTANT OF FORCE TO BE APPLIED AT 0.77M FROM TOP OF TOP SLAB) P151-DONG KICH DOC 200TAN eeN CA HAI DAM HANG (K£TQUALA Ll)'CElATTAJ 0.77M TC!EllNH CO.ATAM BAN EllNH) STITCH SEGMENT S3 BEiWEEN TWO CANTILEVER OF MAIN SPAN CASTED P1 I l // / warSTAGE 11 :- -REMOVE THE JACKS (AFTER REACHING 25Mpa.) GIAI OOAN 11 :- - THAO cAc KICH (SAU KHI E>AT 25Mpa.) P1 - STRESS FIRST STAGE OF CONTINUITY TENDONS FOR MAIN SPAN - TAO UNG SUAT GIAI E>OAN E>AU Tli:N COA BO cAP Lli:N TUCH CH NHIP CHINH / // __ ../ /~ I I I :c--m--m1 STAGE 12:- CROSSING WITH NHUE RIVER CAt qua sOng Nhuf s CROSSING WITH NHUE RIVER CAI qua song Nhu~ GIAI OOAN 12 :- - REMOVE FORM TRAVELLER - THAO VAN KHU<".lN DI ElONG - STRESS ADDITIONAL TENDONS AT TOP FOR PIERS P152 & P153 - GANG KEO cAG GAP O'NG SUAT TRllCJG BO SUNG T~I EINH EOJ VOi TRU P152 & P153 - STRESS REMAINING SECOND STAGE OF CONTINUITY TENDONS FOR MAIN SPAN - T~O UNG SUAT GIAI El~ HAI BO CAP Ui:N Tl,IC CHO NHIP CHINH. - INSTALL SIDL - LAP ElAT TTNH TAI GIAI ElOAN 2. --- /. I I Lm--m--ro1 ,--- '-:" I I I I Lm--ur--m1 f Lu;--u;--u;J /. NOTES:- ~~~~~~~~~~~~~~~~~~~~~~~~~~~~~~~~~~~ GHIGHIJ: - THERE SHOULD NOT BE MORE THAN 1 SEGMENT DIFFERENCE BETWEEN BOTH SIDES OF THE CANTILEVER. - XIN LLJU y RANG 5!; coNHl~U HO'N MOT 511 KHAC Bl~ v~ PHAN EC»,.N GJ(}A HAI B~N cOA E~N EOC HANG - STRESSING CAN BE STARTED ONCE 30 MP.A IS ACHIEVED (CYLINDRICAL). - KEO cANG c0 TH~ BAT EAU KHI ~T EllO'C 30 MPA (HINH TRU) - MAXIMUM WEIGHT OF FORMTRAVELLER CONSIDERED IS 50T - TRONG LllO'NG ON NHAT GOA XE E OGE lfO'C XEM ~T LA 50T SM SAS' SA7' SAS' I B4 I SB3 1 SB2 SB1 1P1 1 SB1' SB2' I SB3' I SB4' _ 1_ _ _ 1 _ - --.t:== ::L- - _L __ _J _ / // / >--r - - - __J /~ I I I I Lcc--m---w1 o--~-+-~~+--~~~~~~~~~~~~~_._~~~..._~__....._~___. Q.IENT: o--~-+-~~+--~~~~~~~~~~~~~_._~~~..._~__....._~___. CHOflAuru: 3" 2111w-11 Updatlld A.K 2A 30KM/11 2nd •ubmll1lon oflllchnlcal daolgn A. K 10 D111W"ID UPDATED A . K 1C ~B/1D A . K HRB - IF TOP OF TRANSITION PIER CAP NOT YET CASTED (CONTRACTOR REQUIREMENT - N£U E>INH MO TRl,I CHUY£N Ti£P CHlJAE>lJQ'C E>OC (Y£u cAu CO.A NI-IATHAU CHO FOR PT INSTALLATION), CAST ITANDTHEN INSTALL ADJACENT STRUCTURE. LAP ElAT PT), E>OC NO VA SAU E>O LAP ElAT K£T cAu u£N K£ CROSSING WITH NHUE RIVER CM qua song Nhut •PROJECT IMPLEMENTATION CONSULTANT Tl1 VAN THl,IC HleN DI,/ AN SYSTRASA FILE NAA1ElTtNBAN/£: PIC-T'EC-GCM-¥1VDJOBD13-BJl',DNG DESIGNED BYTH1£TK£ : A. K CHECKED BYSlll.T:Updatad 18 2Ml&'"ID UPDATED A . K HANOI METROPOLITAN RAIL TRANSPORT PROJECT BOARD !-----+---+----------------,.-.K---4----1-----l BAN DI/AN llWNG IA.TllOTHI llANQI G. Maur1s 1A 31m1/1D Flrotlla» REVISION DATE SLrAOOI Nal.Y DESCRIPTION NQI DUNGWAfJOI IHIHl!BI' HIM! CllllCIDBI' IOI.! PROJECTDIRECTOR IGIAMaocDI/AN: CHIEF~IGNERCll) NHleMlll1£rK£: Alain B~cheraau P. Amaud SCALEITYLE: FORMATKHO BAN VE: A1 STAlUS TfNH~G : Teclmical Design DAlEINGAY: 31/01/10 Thil <Rwi'IDmUll:notbe eithlrlOlrled,<q>ied«otl'lll'Wile NP'Odiacl ln wtdea h P11rt orul8dfor •nr prupmewllhoul:.. prlor'Mltsl parmlllllonot HRB. ......My_..,.,._.......ng ..... ..,.. .... _rn(llpMnt.y .... ~ ... - ......... ~t~ YGnb6n cOo HRB. PROJECTIDVAN: HANOI PILOTLIGHT METRO LINE Sedian Nhon-HantiRailwayS1atial TIJY£N flOONG sATElOTHITHIfll~M TP HANQI Elatn N~n- Ga Hi NOi Tm.E TtNBANVE: NHUE RIVER CROSSING VU'QT SONG NHUI;: DRAl'l1NGNO. BANV£SO: CONST METHOD - 313 PHLIONG PHAP TI-II CONG - 313 PIC-TEC-GCM-WVO-J04-18013-B 3A
  • 24.
    ~,,; ~ I!! ~;; ut Iw .!: F % !I$i !;l 8 ~ uii: B ...-~1 -,,, I I J_~_J__l_ _---"-_ ·____L I I I 4600 SECTION A-A MAT CATA-A0 SCALE: 1125 TYL!;' :1125 l BLENDED EXCAVATION £>Ao HON HQP LEAN CONCRETE B£TONG NGH£0 , _ _ _ , _ _J_J_ 800 3000 4600 PLAN VIEW MAT BANG SCALE: 1125 19 1$ :1125 L--....l---L---------------4----..._---lf------I Q.IENT: L--....l---L---------------4----..._---1,__----1 CHOflAuru: 3" 14111r11 Updatlld A.K -1-,/ '/ ' /+' I ____L ---,-- I I _ ~· /I '- / '~ - 800 2A 30KM/11 10 D1/11r10 HRB2nd •ubmll1lon oflllchnlcal daolgn A.K UPDATED A. K ~81101C 18 2MIBl1D L-~..J!::=.:::....J..;~~::=~::......------------+:~::..:: ~:..._--i::.:..:::::::.:...+.:..::.:=...-l HANOI METROPOLITAN RAIL TRANSPORT PROJECT BOARD 1A 31m1110 REVISION DATE SLrAOOI Nal.Y Flrot -. " ·K BAN 011AN allONG sA.TaO THI HA NQI DESCRIPTION NQI DUNGWAfJOI IHIHl!BI' HIM! CllllClllBI' IOI.! -~ •PROJECT IMPLEMENTATIONCONSULTANT Tl1 VAN THl,IC HleN DI,/ AN SYSTRAS.A PROJECTDIRECTORGIAMaocDI/AN: Alain B~cheraau FILE NAA1ElTtNBAN/£: DESIGNED BYTHli;rK£: A. K CHECKED BYSlll.T: G. Maur1s CHIEF ~IGNERCll) NHleMTH1£r Ke: P. Amaud - II I I I I I I I I I I I I I I I I I I I 121251}1 ~ i ~~ ;! ~§ ci:: :::> w!!! :! 0:: i5 iL :NG ROAD LEVE CAO E>0fll!C' --- ~ PILE CAP TOP LEVE CA.O fl0 fllN~O COC ~ ·' 11~-~~ " ,._~ PILE CAP BOTTOM CA.O E>O f>Ay MO COC LEVEL j---· ~ · EL c PILE TOE LEV CA.O flO MOI CO - - - .____y___ ELEVATION VIEW MATE>llNG SCALE: 1150 Till;: 1150 J: ~ zL1J ....I L1J ...I 0:: N O T E S : - - - - - - - - - - - - - - - - - - - - - - - - - - , GHI CHL.f: 1. ALL DIMENSIONS ARE IN MILLIMETERS-LEVELS ARE IN METER 1.TAT cA cAc KICH THIJOcf)IJQ'C 00 BANG MM -cAc CA.O E>Of)IJQ'C T1NH BANG M 2. CONCRETE GRADE FOR PIER/PIERCAPIPILECAP: F'C=35 MPA (CYLINDRICAL) 2. cAP E>O eeTONG DONG CHO TRUIMO mu: PC= 35MPA (HINH TRU) 3. CONCRETE GRADE FOR PILES: F'C=30 MPA (CYLINDRICAL) 3. GAP E>O COA eeTONG CHO CQC: PC= 30MPA HINH TRl,J SCALETYLE: STAlUS TfNH~G : PROJECT CVAN: HANOI PILOTLIGHT METRO LINE SediDn Nhon•HantiRailway S1atial FORMATKHO BAN VE: A1 Teclmical Design DATENGAY: 31/01/10 Thil <Rwi'ID mUll:notbe eithlrlOlrled,<q>ied«otl'lll'Wile NP'Odiacl ln wtdeah P11rtorul8dfor•nr prupmewllhoul:.. prlor'Mltsl parmlllllonot HRB. ......My_..,.,._.......ng ..... ..,.. .... _m(llpMnt.y .... ~ ... - .........~t~,,.,, ...... HRB. TIJY£N flOONG sATElO THITHIfll~M 1l'HA NQI Batn N~n · GaHi NOi Tm.ETtNBANVE: NHUE RIVER CROSSING VU'QT SONG NHUI;: SUBSTRUCTURES - P151-P154- CONC OUT Kl:T cAu TANG DU'OI - P151-P154 - Kl:T cAu Bi: TONG DRAl'l1NGNO.BANV£SO: PIC-TEC-GDO-WVO-J04-18100-B 3A
  • 25.
    ~,,; ~ I!! " ~;; ut Iw.!: F % !I $i !;l 8 ~ uii: B 3" 2A 10 1200 4250 4250 / .... /-r~ J?7!1)I ' / ...... ___,.,.,. Lf__j_ I I ' /....... __. __,..., If) ..._ -1-/ .... / 'I t--1-----t I ' / ...... ___ _ _,,,..,. LI ... L+ L' ".._, '<-• • . <:,_·;. ·~•. ' '<:, ...._. 4. ·.• • ..~· ' Y. .. " ... ' d :,: ·,.. ~., -..- ~ . .: ., t~~~~ '·~ "I._. .... ·-·~· 3800 PLAN VIEW 2-2 MAT BANG 2-2 SCALE: 1125 rtu;:: 1125 A 14111r11 Updatlld A. K 30KM/11 2nd •ubmll1lon oflllchnlcal daolgn A. K D1/11r10 UPDATED A.K SECTION 1-1 ~TcAT1-1 ~:1J!!lll ....,... 1200 -1-/ .... / 'I t--j-----t I ' /' _,,.. -1-/ .... / 'I t--j-----t I ' /' _,,.. 75 !I! EXCAVATION AND THEN BACKFIU. '~~ ~~ =-N- 5000 1200 BLENDED EXCAVATION er=. TONG NGHeo 7550 >-----fl!t++++++++++++t#lt - - - - - - - - - - --tHt+....+++++++++++<----<'..!-EANCONCRETE e~roNGNGHOO- - HRB SECTION A-A ~TcATA-A ICAl..I:: 1.<1!!11 ....,... •PROJECT IMPLEMENTATION CONSULTANT Tl1 VAN THl,IC HleN DI,/ AN SYSTRAS.A FILE NAA1ElTtN e,1,1/£: PIC-T'EC-GOO-WVO-JOl101-8_3.fl.IJIM; DESIGNED BYTHli;rK£ : A. K 1C ~8110 18 2MIBl1D CHECKED BYSlll.T: G. Maur1s Updatad A . K 1--=---i;;;=-"--+-"u"'PD,t;=TED;....__ _ _ _ _ _ _ _ _ _ _ _"-,."".K"----==-.;.;..;;;=----1 HANOI METROPOLITAN RAIL TRANSPORT PROJECT BOARD 1A 31m1110 REVISION DATE SLrAOOI Nal.Y F1ro1 -. " ·K BAN 011AN allONG sA.TaO THI HANQI DESCRIPTION NQI DUNGsLrAfJOI IHIHl!BI' HIM! CllllClllBI' IOI.! PROJECTDIRECTOR IGIAMaocDI/AN: CHIEF DESIGNERICll) NHleMTH1£r Ke: Alain B~cheraau P. Amaud TOP OF PIER LEVEL CAO £>0 £l1NH TRU ~[ r-'V-~,...,j I.,,-! ~---'.--,-~---·-- ___.....________ I I I I I I / : : CONSTRUCTION JOINT / 12125 ~r-MOI NOi THI CONG I SCALEITYI.Ii: FORMATKHO BAN VE: A1 11100 I I I I I I! 2~0 PILE CAP BOTTOM LEVEL CAO £>0 ElAY MO COC.....______ __ I PILE TOE LEVEL CAO £>0 MOI CQC ~~~~~---- ~ --- SECTION B-B M~TcA.T B-B EAU:: 1Aill rt it.:1• NOTES:-~~~~~~~~~~~~~~~~~~~~~~~~ GHI CHL.f: 1. ALL DIMENSIONS ARE IN MILLIMETERS-LEVELS ARE IN METER 1.TAT cA cAc KICH THIJOc £ll1Q'C £lO BANG MM -cAc CAO ElO£ll1Q'C T1NH BANG M 2. CONCRETE GRADE FOR PIER/PIERCAPIPILECAP: F'C=35 MPA (CYLINDRICAL) 2. cAP £>0 B£ TONG DONG CHO TRUIMOTRU: PC= 35MPA (H]NH TRU) 3. CONCRETE GRADE FOR PILES: F'C=30 MPA (CYLINDRICAL) 3. cA.P ElO cOA er=.TONG CHO COC: PC= 30MPA HlNH TRU STAlUS TfNH~G : Teclmical Design DAlEINGAY: 31/01/10 PROJECT OVAN: HANOI PILOTLIGHT METRO LINE SediDn Nhon•HantiRailway S1atial TIJY£N el/ONG sAr ElOllilTHIfll~M 1l'HANQI Elatn N~n - Ga Hi NOi Tm.ETtNB,l,IVE: NHUE RIVER CROSSING VU'QT SONG NHUI;: Thil <Rwi'ID mUll:notbe eithlrlOlrled,<q>ied«otl'lll'Wile NP'Odiacl ln wtdeah P11rtorul8dfor•nr prupmewllhoul:.. prlor'Mltsl parmlllllonot HRB. SUBSTRUCTURES - P152-P153 - CONC OUT - 1 I 2 Ki:T cAu TANG DOOi - P152-P153 - Ki:T cAu Bl: TONG - 1 / 2 ......My_..,.,._.......ng ..... ..,.. .... _rn(llpMnt.y ....~ ...- .........~t~'"""'""'""""· DRAl'l1NGNO.IBANVESO: PIC-TEC-GDO-WVO-J04-18101-B 3A
  • 26.
    ~ it7 !~ ~11. 5251 5251 m 2218523 587 1924 1924 587 523 2218 7~ I .------J______ I .------J______ I Ill ---~ T 1- r T --- -- /l_..----- Ill -~ I I I I I I le 0 ~ .q- ~ I ~ ~ t:: I ~ I (;i - I I I I ---~ - -~+~ ---------------80 :El S? ~ in.., "°0 ~ 4430 I 2~nn I 5430 (~ 101'60 L- c-- . - - ___...- I____. 'l!; n~ ~ i ~ ! ti ~~ ~ ',!! n * 50T JACKS REINFORCEMENT TO BE ADAPTED IF USING BIGGER JACKS KICH 50T OOT TH.;:P CAN PHO HQ'P NEU SO' Dl,JNG cAC K[CH LON HON 545 4480 4 5251 523 2511 4 2218 523 587 3476 c ELEVATION VIEW MATDO'NG 1000 1924 SCALE: 1125 ~lt:1/25 395 395 1000 21 00 3B"8 3848 PLAN VIEW A-A MAT BANG A-A SCALE: 1125 ~16 :1125 2511 t----+----+--------------+----t--------t CLIENT: 1----+---+--------------+---1----+----1 CHOEIAUnr: 2A 3CW4/11 2nd aubmi11ion oflechnicaldllil9iun A. K 1D 01/1Ql10 Updatlld A. K HRB 1C 2Mllltl0 u 1lld A. K 18 ZW&"IO UPDATED A. K l--"'---t="-='-+~=------------+="---F-"=-+~=--1 HANOI METROPOLITAN RAIL TRANSPORT PROJECT BOARD 1A 3UJ1110 Fim-. REVISION DATE SC/ADO! NGA.Y A. K DESCRIPTION DelllNEDl!Y NQI DUNG SO'A DOI 111itl"K£ IH!llEDl!Y 1111.r BAN DI/ANDUONG BAT DO lHI HAN(ll 4430 5430 4480 5251 523 587 I 523 JACK LOCATION VI TR[KICH 545 41 - ---- - - --- - --- - -f-- 2218 41 3476 II PROJECT IMPLEMENTATION CONSULTANT TV VJN THVC Hl~N DIJ AN ALENMIEITtN BAN'IE: SYSTRAS.A DESIGNED BYTll1£r~ : A. K PROJECT DIRECTORIGIANElOcD./AN : Alain B'9chereau FORIMTI~BAN v£ : A1 1198 1198 700 498 308 SECTION B-B MATCAT B-B SCALE: 1125 ~ 1e :1/25 3 12 1198 700 496 SECTION C-C MATCAT C-C SCALE: 1125 ~I· :1125 NOTES : ~~~~~~~~~~~~~~~~~~~~~~~ GHICHU: 1. ALL DIMENSIONS ARE IN MILLIMETERS-LEVELS ARE IN METER 1.TAT cA cAC KICH THIJO'C DIJQ'C DO BANG MM -CAc CAO DO DIJQ'C '11NH BANG M 2. CONCRETE GRADE FOR PIER/PIERCAP/PILECAP: F'C=35 MPA (CYLINDRICAL) 2. cA.P DO BE TONG DONG CHO TRl,Jlt.10 lRl,J: FC= 35MPA(HINHTRl,J) STATUSlT1NH T~ : Technical Deeign DATEINGAY: 31/01110 PRO.ECTIDI/AN : HANOI PILOTUGKT METROLINE Sadlon Nhon- Hrml RalwaySlllllan ru~N WONG sAT00 THITHIDIEMTPHANQI Eo911 Nh&i-Ge H~ NOi TITlfl~NBANv£ : NHUE RIVER CROSSING WQ'T SONG NHUI;: ORA'MNGNO.BANv£ SO : PIER CAPS- P151 -CONC OUT MO TRl,l - P151 - K~T cAU B~ TONG PIC-TEC-GDO-WVO-J04-18250-B 2A
  • 27.
    ~ it7 !~ ~0.. 5251 5251 m 2218523 587 1924 1924 587 523 2218 m I ~1 ~ I Ill ---'""- I ,J I I ---- -- /-- Ill ->----- I I I I I I le 0 ~ .q- :B I ~ ~ t:: I 8 I N - I I I I -~ ~- ------------===+~ ---------------0 8 :El S? ~ II) <'> co 0 ~ 4430 I 2<:tJo I 5430 (~ 101160 ._. ---1--1...--'- - 'l!; n ~ ~ i ~ ! ti ~~ ~ ',!! n 141 4' - c ELEVATION VIEW MATDO'NG SCALE: 1125 191•:1/25 * SOT JACKS REINFORCEMENT TO BE ADAPTED IF USING BIGGER JACKS KICH 50T COT TH~P cAN PHO HO'P NEU SO' 01,JNG cAc KICH LON HON 545 4460 5251 523 2511 2218 523 587 3476 395 395 1000 1000 H24 3al48 3848 PLAN VIEW A-A MAT BA.NG A-A SCALE: 1125 1919:1/25 2511 t----+---t----------------+----+-----t>------o CLIENT: 1--~-+-~~1--~~~~~~~~~~~~~-+-~~~+-~--11--~----1 CHOEIAUnr: 2A 3CW4/11 2nd aubmi11ion oflechnicaldllil9iun A. K 1D 01/1Ql10 Updatlld A. K HRB 1C 2Mllltl0 u 1lld A. K 18 ZW&"IO UPDATED A. K 1--"'---+"~"--+-=="--------------+-'-"'---F-'='--i~='--t HANOI METROPOLITAN RAIL TRANSPORT PROJECT BOARD 1A 3UJ1110 Fim-. REVISION DATE SC/ADO! NGA.Y A. K DESCRIPTION DelllNEDl!Y NQI DUNG SO'A DOI 1111trK£ IH!llEDl!Y 1111.r BAN DI/ANDUONG BAT DO THIHAN(ll 4430 5430 4460 5251 523 587 I 523 JACK LOCATION VI TRIKICH I 2218 3476 545 141 141 II PROJECT IMPLEMENTATION CONSULTANT TV VJN THVC Hl~N DIJ AN ALENMIEITtN BAN'IE: SYSTRAS.A DESIGNED BYTH1£r~ : A. K PROJECT DIRECTORIGIANElOcD./AN : Alain B'9chereau FORIMTI~BAN v£ : A1 308 308 1198 700 498 308 SECTION B-B MAT CAT B-B SCALE: 1125 1919:1/25 3 12 2 6 1198 700 498 308 - ".'! -~ - -·. ·· ···.,·~~- ' ... !+===+====' : ..- • •+-----+---------< ~ •• - .. I+-- - --+------< - -_. .. - ~_..•:· . f 4 SECTION C-C MATCAT C-C SCALE: 1125 tY 19 :1125 NOTES : -----------------------~ GHICHU: 1. ALL DIMENSIONS ARE IN MILLIMETERS-LEVELS ARE IN METER 1.TAT cA. cA.C t<ICH TI-ilJO'C DIJQ'C DO BANG MM -CAc CAO DO DIJQ'C '11NH BANG M 2. CONCRETE GRADE FOR PIER/PIERCAP/PILECAP: F'C=35 MPA (CYLINDRICAL) 2. cAP DO BE TONG DONG CHO TRl,llMOlRl,I: FC= 35MPA(HINHTRl,I) STATUS lT1NH T~: Technical Deeign DATEINGAY: 31/01110 PRO.ECTIDI/AN : HANOI PILOTUGKT METROLINE Sadlon Nhon- Hrml RalwaySlllllan nJ~N WONG sAT00 THI THIDlt'.MTPHANQI Eo911 Nh&i-Ge H~ NOi TITlflTENBANv£: NHUE RIVER CROSSING WQ'T SONG NHUI;: ORA'MNGNO.lBAN'IE SO : PIER CAPS- P154 -CONC OUT MO TRl,l - P1 54 - K~T cAU B~ TONG PIC-TEC-GDO-WVO-J04-18252-B 2A
  • 28.
    ~ :ll i I ~ ~ u7 ~ ~ sF~ ,,11 c !i § ~ Ii ... n §II) I DETAIL 1 CHITle:T 1 1000 1000 I 2362 SLOPE 1% d6c 1% 1289 5085 528 HALF SECTI0 N A-A._______.:==-------=..::==-------------J NO'A MAT CAT A-A SCALE: 1/20 TY L1~:1121l 1289 5085 532 I I l l I I I ' I I I I I I ' I I I 'I 880 I I '1 I I I I I I I '1 I I I I I I I l I l I I I l l I l 1384 -+---+-------,---------1'--------+--.___, L-------,L--------,1 g "'- r , , I __j_~.L...lJ_ _.l_ ,__ _______ _.1_._ ________ _1t~~~T~NHIP ~ ~- ._________.________....________._______._______u'",: OF PIER I EXP. JT. · ~ · ~·-----;;-~--·-~·~·-~·-;;;--·-~·~·-~TRU/MOI NOi GiAN NO' 5085 VIEWC-C GQC NHiN C-C SCALE: 1/20 TY LE::1/20 t----+----+-------------_.____...__ __.____. CUENT: t----+----+-------------_.____...__ __.____. CHOeAuTLI: 2A 30/D4/11 1C 25/D8110 HRB 1B 2lll08/10 UPDATED A. K . Amoud HANOI METROPOLITAN RAIL TRANSPORT PROJECT BOARD 1----+----+--FJ-.--,..-ue------------4-,,_-K---4----+-.Amoud---l BAN DI/ ANeirONo ~TeO THIHANQI1A. 31/01/10 REVISION DATE IUllllllBr aiEOOBr aEFIJ'DED sil'AOO NClAY TIElll! SOI:! allN1$Hllll! •PROJECT IMPLEMENTATION CONSULTANT 1Uv>H Tlil,IC HleN Dl,r AN SYSTRAS.A PROJECT DIRECTORIGW..!lOcDI/AN : Alain ~ereau 3400 1780 1380 S1 S2 SECTION B-B MAT CAT B-B STEEL OR CONCRETE CAP TO BE PROVIDED Mii be tllng ho~c tht!p 4lfO'C cung cip wi b6 tr! FILENAME~N BAN~ : DESklNED BYITlllitr~ : A.K CHECKED BYIsoAT : G. Maurls SCALE: 1/20 TYLE::1/20 WITH CORRESPONDING FIXING ARRANGEMENT liAn k6ttwng ung. t ·-<'.1 2?20 4oETAIL-1 CHI TIET-1 I I SCALE: 1/5 'TYLE::1/5 I I I I I I I I I I I I I DETAIL-3 CHI Tl~T-3 SCALE : 1/10 TYLE: : 1/10 I I KEYPLAN MAT BANG CHiNH i STATJSH~H~G: Technical Design SCALE : 1/500 TYLE:: 1/500 NOTES:~------------------~ GHI CHJ: 1. ALL DIMENSIONS ARE IN MILLIMETERS. 1. TAT cA cAc KICH THU'OC ™EO DONII MM. 2. CONCRETE GRADE FOR DECK: F'C=45 MPA (CYLINDRICAL) 2. C/{p ae TONGDOI VO'I BAN MATcAU fC"-45 "41!!!!MAUlRU) 3. FOR GENERAL SEGMENi ARRANGEMENT REFER TO DWG. NO. 3. ae XEM BO ml PHAN D~ CHUNG XIN XEM BAN ve sO PIC-TEC-GAD-WVO.J00-18007-B TO PIC-TEC-GAD-WVO.J00-18009-B PROJECTDU'All: HANOI PILOTLIGHT METRO LINE Section Nhon·HanoiRailway Station TIJY~N EllJCNGs.6.TDOTHI THIEll~M TP HANOi 9ofn Nh&i.Ge HiN(li FORMAT KHO BAN~ : DATEINGAY: 31/01/10 nmlIDIBAN~ : NHUE RIVER CROSSING VLJQT SONG NHUI;:A1 Thil dl8Wil"G ITllll: not be littw loaned. copilda-oetwwill repnxlUOld h whal•or In pmrt cruMldfar•ny prupmewllhaul:tt.pfbrwrtllsl permi.lond HRB. DECK- SEGMENTS ES1-ES2 - CONC OUT- 1 / 2 BAN W,T cAU - PH.'.N OOAN ES1-ES2 - ~T cAU BIO TONG - 1/ 2 CHEFDESIG~ICHONHla,i !Hit! ~ : Un '6nlly llhllngdlrqc ph•p10 d,,.g duGI """ him Oll)c, rnOtpl'jn hoy ,... bO. mA llhllngdlrqc•• ding9l>il'G '*'blna.lo HRB. DRAWINGNO.I BAN~SO: P. Amaud PIC-TEC-GDO-WVO-J04-18300-B 2A
  • 29.
    DETAIL 1 CHITl~T1 ., SLOPE 1% flOd6c 1% ... :.. . .•· ..g .4~ ··. ~ ~ · • '4. B SYMMETRY t---50-B5~9~5~1---t-~-~8=80~---t~-~964~---i'~IX(rNG ~ ----L · ~ . B 5085 1224 A • of A "'""::::-----+1--...t- Cl : ·~~ • . .,. ___1_-+-lzS--~-----+...~J-1 - 1000 1289 452 I 2343 .q.;. · •.":· ~.· l .soci:. 1·.. ·• I Ci; ~ •_:4...4 .. . "' . .i -... ....~~--+--------+----------+---·------..............--......---+-'-l---~ -- 1000 1289 452 I 1773 r11 500 0 0 ~ HALF SECTION E-E NO'A MAT CATE-E ... .. .•q • SCALE: 1/20 TYL~:1/20 548 I . . ~.· . . .. .•. •• ......<q . •.' . ~ .. ... ·¥ . .. q ·• • I 1503 B ·'-DECK AXIS I TIM KeiT cAU NHIP I CAST-IN-SITU PLINT_H FOR ACCESS Cf.WI COTDUC T>?-1 CHO CHO LOITllOP ~ OPENING COVER N/PMO' I ACCESS OPENING (1000x1000) - ,__j__LO TIEP w:v" (1000x1DOD) ILl:-1 -I---, 10 500 . ~ .~. . ..... .. -. q :· "'.,. ' ~. :• ...............,...--+-.....--..-----. .• q •. ·- ~ ~. ... ""· .~ ~ ~·I ,"' .. .....•. ... I ., ~ . ·~. <f • ~. • . I "Q'· ... . •"" .. . ~ . • 1"': ~ • q. • • j~·. ·: ..•~.. 1 · .- •. ... • .. I .. q · . "' ""' "' I .q . , .. .. ~ . """'., " • I " 1--""""·--.·,., ·I , "'· .. 570 I I I I _ ]·~ J • I } J •, ... •· ~ '.... . 0 - . ,+--- 1----I·---· -·---·-~F PIER/ EXP. JOINT 4 OATRU I MOI NOi GiAN NO 1571;.... 441 413 548 1084 HALF SECTION D-D NO'A MAT CAT D-D SCALE: 1120 ti' u;::1120 HALF SECTION F-F NO'A MAT CATF-F SCALE: 1/20 ti' L~:1/20 B I I I I I I I I I ''' 11 1111frr1 1 1 11 11 1~1 KEYPLAN 1trMAT BA.NG CHfNH 11 1' I1 1I 1..,f SCALE : 1/500 TY LI;: 1/500 NOTES:--------------------~ GHI CHJ: 1. ALL DIMENSIONS ARE IN MILLIMETERS. 1. TAT cA cAc KICHTHU'OC ™EO DONVJ MM. 2. CONCRETE GRADE FOR DECK: F'C=45 MPA (CYLINDRICAL) 2. C/{p ae TONGDOI VO'I BAN MATcAU fC"45 "41!!!!MAUlRU) 3. FOR GENERAL SEGMENi ARRANGEMENT REFER TO DWG. NO. 3. ae XEM BO ml PHAN D~ CHUNG XIN XEM BAN ve sO PIC-TEC-GAD-WVO.J00-18007-B TO PIC-TEC-GAD-WVO.J00-18009-B ~~-.-----.-~--.-~~~~~~~----.-~-----.~---.-~--.--~~~~~~~~~..--~~~~~~~~----.-~---:-,...--,,-~~..------.-~~-.-~...,....-~-===r==========================~tll t-----+---t-----------------+----+-----t>------i CLIENT: • PROJECTIMPl.EMENTATIONCONSULTANT FILENAME~NBAN~: SCALflITL~: STATJSH~H~G: ~ ~ CHO eAu Tll: 1Uv>H THl,IC HleN Dl,r AN PIC-m>GDC>WV<>JD4."'"'""'_2A.DWG - Technical Design ~ ~i 111 t-----+---t-----------------+----+-----t>------i • SYSTRAS.A DESklNEDBYT!llitr~ : FORllATKHOBAN~: DAlENGAY: ij ~ HRB AK A1 31/01/1052 ~ .5 v. 3D1D4111 2nd MJbmllllDn Dftachnlcal dUgn A. K G. M•LN P. Amaud ~ ~ ~ 1C 25/D811D Updalod A. K G. M•<ft P. Amaud CHECl<EDBYSClAT : 8 !I ii 1B 2lll08/10 UPDATED A. K G. M•<ft " · Amaud HANOI METROPOLITAN RAIL TRANSPORT PROJECT BOARD G. Maurls ~!.. ! ~l 1--,-A--1-3,-io-111_o_F1__.m_1..-ue------------+-A.-K---+-G-.. M-.---t-P.-Amaud----t BAN DI/ ANeirONo ~TeO THIHANQI ~ PROJECT DIRECTORIGW..!lOcOiiAN : CHEF DESIG~ICHONHla,i !Hit! ~ : REVISION DATE DEllCRl'TION IUlllllllll' aiEOOl'f aEFIJ'DED .. ~ -i sil'AflOI NClAY NOIDINJsUAOOI TIElll! SOl:r allN1$nElll! Alain ~ereau P. Arnaud Thil dl8Wil"G ITllll: not be littw loll'llCI. copilda-oetwwill repnxlUCICI h whal•or In pmrt cruMldfar•ny prupmewllhaul:tt.pfbrwrtllsl permi.lond HRB. Un '6nlly ldlllngdlrqc ph•p10 d,,.g duGI """ him Oll)c, rnOtpl"jn hoy ,... bO. mA ldlllngdlrqc•• ding9l>il'G '*'blna.loHRB. PROJECTDU' All: HANOI PILOTLIGHT METRO LINE Section Nhon·HanoiRailway Station TIJY~N EllJCNGs.&.r DOTHI THIDl~M w HANOi 9ofn Nh&i.Ge HiN(li nmlIDIBAN~ : NHUE RIVER CROSSING VLJQT SONG NHUI;: DECK- SEGMENTS ES1-ES2- CONC OUT-2 / 2 BAN W,T cAU - PH.'.N OOAN ES1-ES2 - ~T cAU BIO TONG - 212 DRAWING ND.IBAN~so: IPIC-TEC-GDO-WVO-J04-18301-B 2A
  • 30.
    B 548 1503 I "' ~L 4r-... _i_:...::J.-----L-,-----1_~ - <. I 500 <I· • 4 ,. 4 0 ~-~---l-------+----------+--~~'--•'_• __~,__.,•_;..-~--~P___..._.-- ~L..__ 1000 1289 I 452 I HALF SECTION A-A NliA MAT CAT A-A SCALE: 1120 ti' Lf;::1/20 5085 2343 I B ~.---------1------------------1------------ll ! ! I DECKAXm r 1 r""~°'""" I I I I I I I I I I I I I I I I I I I I I I ~ ~ _______.._________..____.________.________ ~ 1000 1289 532 I VIEWC-C GOC NHlN C-C SCALE: 1/20 T'l'Li;::1/20 880 1384 I S1 I ~ SA9' SB9' SB9 ------.... ' '' '''' 'I~ I I I ~ ~ I I I 2000 SECTION B-8 MAT CAT B-B 548 SCALE: 1/20 T'l'Li;::1120 I 1503 l~ ......---.--.-----------------lI I I I ~DECKAXIS r TIM ~T cAu NHIF.. l'""'l "'./ .., I •.q ~ .....~·-_,____._____.___________ ~ I 548 I 1503 HALF SECTION D-D N(fA MAT CAT D-D SCALE: 1120 T'l'LS:1/20 I IIlip 15 r 1,,,,1,,! ! ! I I ! ,;! I I I I I I , , , -=- b , , , . . , . . KE'lPLAN MAT BANG CH[NH SCALE : 1/500 ti' LI;:: 1/500 I I HT- S?I I __ /d t I ~~ DETAIL-1 CHI TIET-1 SCALE : 115 T'l' Li;::1/5 NOTES:~------------------~ GHI CHU: 1. ALL DIMENSIONS ARE IN MILLIMETERS. 1. TAT cAcAc K[CH THllO'c THEOElONVI MM. 2. CONCRETE GRADE FOR DECK: F'C=45 MPA (CYLINDRICAL) 2. ~ e£; TONGEJ(SI Veil e.(N MAT cAUl'o=4I; lApe cMAUTRl,I) 3. FOR GENERAL SEGMENt ARRANGEMEfff REFER TO DWG. NO. 3. El~ XEM BO TRI Pli.&.N ElOAN CHUNG XIN XEM BANVE SO PIC-TEC-GAD-WVO-J00-18007-B TO PIC-TEC-GAD-WVO-J00-18009-B ~ 1 o----+----+-------------_.____..._______. CLIENT: II PROJECTIMPLEMENTATIONOONSULTANT STATUSlT1NHT~: PRO.ECTl Dll AN : HANOIPILOTUGKTMETROLINE Sedlon Nhon-HrmlRalwaySlllllan 'I' ! CHO~•" n ~ TV V.'..' THVC Hl~N DIJ ,., Technical Deeign .. ~ l!; 1 - - - - + - - - - + - - - - - - - - - - - - - - - ' " - - - - - - - - i . - - - - - 1 """' 'Vo • "" ~ "" PIC-TEC<lllO-Wlt>.KJ4-l..,..,_:rADWe - ru~N Ell/ONG sATOO THITHIDlt:MTP HANOi Eoflll Nhfin-Ge H~ NOi ~~ SftTRASA t ~ ~ HRB DESIGNEDBY TH1£r~ : FORIMTl~eANv£ : DATEINGAY: TITlfTtNBAN~ : NHUE RIVER CROSSING ALENMIEITtN BAN~: 7 i!~ 2A 30oGll11 2nd•ubm1111onotlllchn1ca1d-.,, A.K 6 . Maurte 1>. Amaud A.K A1 31/01110 WQ'TSONGNHUI;: ~!ti ~~ ::~ ~::.~ ~~ :::~: :::::: HANOIMETROPOLITANRAILTRANSPORTPROJECTBOARD Cl£Cl<EDBYsoAT : "'~"-'II"""""'"_""_,,_,.,._ __, DECK-SEGMENTSS1-S3-CONCOUT ~ ~ ~ 1-- 1 -A--+s-u-11-110--+-F-im--.------------.j..A.-K_ __._6_.. Ma-u-rie---i.P-.Amaud---l BANDl/ANflUONGsATflOTHIHAN(ll 1---G_._M_a_un_·s------1 =.::~~.,..-ror.,,,.p._w111oo.1111opt1or- BAN M.!<TcAU - PHANOO~S1-S3 - K~TcAUB~T0NG ...._~ ; ~ REVISION DATE DESCRIPTION DelllNEDl!Y IHlllEIJl!Y CllJEFOFDBD PROJECT01RECTOR1G1Ar.1rocD11AN: CH1EFoES1GNER1CHONH1eMTH1~~: ..,"'""'""""" "-"''pd•"'•"""'""'"'"'"""'~...,.., DRA'MNGNO.BAN~so : I~._~_~__w_~_D01_.__N_~_Y_.______~_1_~_NG_s_~_~_1_ _ _ ___.~™'-~E--~D-r _ _._00_1_11i11_11ET_E.._________________._A_la_in_B~_ch_e~_a_u___________.___P_._Am_a_ud_____.__....._~_. m_•""""_•_"-_••_o1no_'_...,_,.,_..,_,..._"_RB.___-'-----~P~l~C~-~T~E~C~-~G~D::....::0~-~'li/V.:....:.~0~-J.=..::0~4--1~8~3~0~2~-~B:..._.i....:2~A~
  • 31.
    B ·:~~Z1 1503 "d::-~. 1_ 4;r-....___,:5...________....j- ~ . '548 · 1 0 • .4 • , 0 ~-~---1-------+----------l---- 'l 4 g .:I <J J -· ~L _ _ _ 1000 I 1000 I 1289 452 I HALF SECTION A-A NliA MAT CAT A-A 1289 SCALE: 1120 ti'Lf;:1/20 5085 I 532 I 880 VIEWC-C GOC NHiN C-C SCALE: 1!20 ITLl;:1120 2343 B I 1384 I I I I~ I ~ 1 - 1,,,,I I I I 11 SA9' SA9' SB9' 3000 SECTION B-B MATCATB-B SCALE: 1120 ti' LS:1/20 548 I I 1499 SAS' SBB' -... I I I I I I I I I I I I I I I KEYPLAN MAT BANG CHfNH SCALE : 1/500 rri...e: 11500 I 1: 1f 1 1 1 !!i i I I -tr-~ I I ;.Ji t I ~j_jj_ DETAIL-1 CHI Tli;T-1 SCALE: 115 ti' Ll;:1/5 - ~. : .·ri-~. -,:::::='===::i-----------li .., ' . ' < BOTTOM BLISTER TYPE 1 I I I l_DECKAXIS I TIM l<tT cAu NHll' ' - - " SEE DWG. NO. - PIC-TEC-GD WVO-J00-18330-S ........._' XEMBANvt SO- PIC-TEC-GDO-WV 00-18330-B - ~BOTTOM BLISTER TYPE 1 ~· ~~·-·~.;_.....__..._1__...1,__ _ _ _ _ _ _--li ~ I 548 I 1503 HALF SECTION D-D I NliA MAT CAT D-D SCALE : 1!20 ti' Lf;:1/20 NOTES:-------------------~ GHI CHU: 1. ALL DIMENSIONS ARE IN MILLIMETERS. 1. TAT cAcAc K[CH THllO'c TliEO ElON VI MM. 2. CONCRETE GRADE FOR DECK: F'C=45 MPA (CYLINDRICAL) 2. ~ e£; TONG EJ(SI Veil e.(N MAT cA.ul'o=4I; lApe cMAUTRl,I) 3. FOR GENERAL SEGMENt ARRANGEMEfff REFER TO DWG. NO. 3. El~ XEM BO TRI PH.'.N ElOAN CHUNG XIN XEM BAN VE SO PIC-TEC-GAD-WVO-J00-18007-B TO PIC-TEC-GAD-WVO-J00-18009--B ~ ~ I II PROJECT IMPLEMENTATION CONSULTANT PRO.ECTI DI/ AN : HANOI PILOTUGKT METROLINE Sadlon Nhon - Hrml RalwaySlllllan .. ~ l!i , ruvJN THVCH1eN 011 AN •1c.TEC<lll0-Wlt>.KJ4-1111DM1_:r.o.owe - ru~N Ell/ONG s.J.Tao THITHI01t:MTP HANOi Eoflll Nh&i-Ge H~ NOi 5 ~ SftTRASA t ~ ..: HRB DESIGNEDBY Tll1£r~ : FORIMTl~eANv£: DATEINGAY: TITlf~NeANv£ : NHUE RIVER CROSSING ALENMIETtN BANv£: STATUSIT1NHT~: Technicel Oeeign 7 i!~ 2A 3MJ.11'11 2nd•ubml11ionotlllchnlcald-.,, A.K 6 . Mauite P. Amaud A.K A1 31/01110 WQ'TSONGNHUI;: ~ ! ti t-~~~-t:~:~~;;.....;-=~~00aPDA=~=------------~~:::.;~'°'---F~'-"·::=~::::~:-'":::=::_-1 HANOIMETROPOLITANRAILTRANSPORTPROJECTBOARD Cl£Cl<EDBYsoAT: "'~0-'ll"""""""_""_,,_,.,._ __, DECK-SEGMENTSSA9'-SB9'-CONCOUT ~ i g "'"'' G Mauris ilwholeor inpartorUlldforanrp~wtto.tllwpricrlllrinln ~ ~ ~ 1A m11110 Fim 18aJo A. K p. Maurie P.Amaud BAN DI/ANDUONG BAT DO lHI HAN(ll 1------....------1 pormiuionofHRB. BAN M~T cA.U - PHAN ElO~ SA9'-SB9' - ~T cAU B~ TONG - ~ I~ REVISION DATE DESCRIPTION DelllNEDl!Y IHlllEIJl!Y CllJEFOFDBD PROJECT01REC10R1G1Ar.1roc1X,1AN: CH1EFaES1GNER1CHONH1eMTH1£r~: ..,"'""'""'"""-"''•d""'""""'""'"'"'"""'~....,.... ORA'MNGN0.1BANv£SO: I~....._~_~__._w_~_D01_.__N_~_Y_.______~_1_~_NG_s_~_~_1______.~ra1_~E--~D-r _....L.00_1_11i11_11ET_E...__________________J_A_la_in_B~_ch_e~_a_u___________.i._~P~.~Am:..:.::a=ud:..._____.i._...,,_~_. m_•""'"_•_"-_••_o1no_t_...,_'*'_..,_,..._H_RB.___..L__ _ _ _~P~l~C~-~T~E~C~-~G~D~O~-~'li/V!.!~Q~-J!!!!0~4~-1~8~3~0~3~-~B~.L.;2~A~
  • 32.
    B -0 i ------+--+I~ L"' I . , . ~ .----vi--~5~4~8~+--+-~1=099~----4~00=---I ~ !! I 1: 5Qd. I ' ,• ' •• I ~ ~-~---t--------+---------+--~~~----.....;:•~4-·---------' ..;.....,..;;;i~ ~~ 1000 §.., 1000 1289 457 I HALF SECTION A-A NO'A MAT CAT A-A 1289 SCALE: 1fLO TI'Lt;::1/20 5085 I 532 I VIEWC-C GOC NHlN C-C SCALE: 1/20 TI' Li;::1/20 880 2339 B l..r-DECKAXIS r TIM KB cAU NHIP 1384 I ~SA9' SB9' I ,_,,- I ~ I I~ I ~ SAB' SB8' ... Vw/i I SAS' I '' ''liu;LI SA7' SB7' -... I I I I I I I I I I I I I I I KEYPLAN MAT BANG CHiNH SCALE : 1/500 Ti' LI;:: 1/500 ~l l ! y!l l !!I I ~ IiiSB8' I I Ht- ;!j I _;j'[t t I [. - ~ • • , • " ·;, . ·I. a· .• 4 q "l .4 <f A • a ' .. I ~Jj)_ DETAIL -1 CHI TIET-1 I '"""" SECTION B-B MAT CAT B-B 548 SCALE: 1/20 Ti' Ll;::1/20 I I 1485 1 ' I I I SEE DWG. NO. - PIC-T C-GDO-WVO-J00-18335-B XEM BANvesO-PIC-TE DO-WVO-J00-1833&a SCALE: 1/5 Ti' Ll~:1/5 / DEVIATOR TYPE 1 dU CHUYE:N Hl/ONG LOAI 1 '.."'i----+---------1+---------.1J ~-- ---·--- ll ~~~~~·' . . 4 • • ~ I 548 I 1499 HALF SECTION D-D NO'A MAT CAT D-D SCALE : 1/20 Ti'Li;::l/20 I i I l NOTES:~------------------~ GHI CHU: 1. ALL DIMENSIONS ARE IN MILLIMETERS. 1. TAT cAcAc K[CH THllO"c THEO ElONVI MM. 2. CONCRETE GRADE FOR DECK: F'C=45 MPA (CYLINDRICAL) 2. ~ ee TONGEJ(SI Veil e.(N MAT cAUl'o=4I; l,1pe CMAUTRUl 3. FOR GENERAL SEGMENt ARRANGEMEfff REFER TO DWG. NO. 3. eeXEM BO TRI PHAN ElOAN CHUNG XIN XEM BANve so PIC-TEC-GAD-WVO-J00-18007-B TO PIC-TEC-GAD-WVO-J00-18009--B ~ 0 ~ t----+----+-------------_.____..._______. CLIENT: II PROJECTIMPLEMENTATIONOONSULTANT PRO.ECTIDI/~ : HANOIPILOTUGKTMETROLINE Sedlon Nhon-HrmlRalwaySlllllan ~ _ 1----+----+-------------.....---1-------i.----1 cHO aAu nr: , ru vJN rHvc Hr~N 011AN ••c.TEC<lll<).Wllt>.KJ4.1..,..,_:r.o.owe - ru~N Ell/ONG s.J.roo THI THI01t:MTP HANOi Eoflll Nhfin-Ge H~NOi ~ n HRB SYSTRA s.A DESIGNEDBYTll1£r~: FORIMTl~eANv£: DATEINGAY: TITlfTtNBANv£: NHUE RIVER CROSSING ALENMIEITtN BANv£: STATUSIT1NH T~: Technicel Deeign 7 i!~ 2A 3MJ.1/'11 2nd•ubm1111onotlllchn1ca1d-.,, A.K 6 . Mauite 1>. Amaud A.K A1 31/01/10 WQ'TSONGNHUI;: ~ !ti ~~ ::~ ~::.~ ~~ :::~: :::::: HANOIMETROPOLITANRAILTRANSPORTPROJECTBOARD Cl£Cl<EDBYlsoAT : "'~•-'II"""""""_""_,·_,,.._ __, DECK-SEGMENTSSA8'-SB8'-CONCOUT ~ ~ ~ 1--1-A--+s-u-11-110--+-F-im--.-------------1--A.-K___._6_.. Ma-u-rie---i.P-.Amaud---l BANDl/ANflUONGsATDOlHIHAN(ll ..__G_._M_a_un_·s-----1 =.::~~,...-ror.,,,.p._w111oo.1111opt1or- BAN M~TcA.U - Pl-IANElO~SA8'-SB8' - ~TcAUB~T0NG ..._~ ; ~ REVISION DATE DESCRIPTION DelllNEDl!Y IHlllEIJl!Y CllJEFOFDBD PROJECT01REC10R1GIAMrocD11AN : CHIEFDES1GNERCHO NH1eMTH1~~: ..,"'""'""""" "-"''~"~""'""'"'"'"""'~....,..., DRA'MNGNO.ieANv£SO: I~._~_~__._w_~_D01_.__N_~_Y_.__ _ _ _ _~_1_~_NG_s_~_~_1_ _ _ ___.~ra1_~E--~D_r _ _._00_1_11i11_11ET_E.._________________._A_la_in_B~_ch_e~_a_u___________.___P_._Am_a_ud_____.__....._~_.m_•""""_•_"-_••_~_~'--_~'*'_..,_,..._"_RB.___-'-----~p~l~C~-~T~E~C~-~G~D::....::O~-~'li/V.:....:.~Q~-J.=..::0~4--1~8~3~04::....:..-~B:..._.i....:2~A~
  • 33.
    B I ~ ~ :•' 1o.--=548~--"'--1---'-----'-148=5_ _ ___J • ~ . I.'._ - ... 1 _ ......~-------_J ~ < 1 5cio_·a •1 .' • ' o" 4 ,, 4 ;,- .l 4 <I ~ ~~~---1~~~~~~--+-~~~~~~~~-l---~~--~-~~--"---~--"'--~~~-1-~ 1000 1289 I 470 I HALF SECTION A-A NO'A MAT CAT A-A SCALE: 1120 Ti' Ll;::1/20 5085 2325 B ~.-~~~~~---,-~~~~~~~~-.-~~-~~~~~---,-~~~~~~~~----! I I Ir- DECKAXIS r TIMK8° cAu NHIP I I I I I I I I I I I I I I I I I I I I I I I I I I I I I I I I I ~L-~~~~~-'-~~~~~~~~....L....~~_J~~~~~-'-~~~~~~~~---1 I 1000 I 1289 I 532 I VIEWC-C G6C NHlN C-C SCALE: 1/20 Ti' Lt;:1120 880 I 1384 Pt/J I SA7' ,,,,,fir,,I I I I I I I I I I I I I KEYPLAN MAT BANG CHiNH ,, ,, ,,,, ,,Htd I SB7' ~SAS' SB8' I ,,-------- I ~ 1 ~~ I ~ I lfz! I ~ .4 <I" _<.J 4 ' 4 • SA7' SB7' 3000 4 SECTION B-B MAT CAT B-B SCALE: 1120 Ti'Ll;::1/20 ' 548 1463 I I I ~ ......~ -.,......,., ~"""T'""~~~..-~~~~~~~~---11 4 ., 4 4 . ' < 4 I I I I SA6' SCALE : 1/500 Ti' LI;:: 1/500 S86' ~ I l I ' 0 ~ I 1 I I Ht- ~· I !d ' I ~-ill- DETAIL -1 CHI Tl~T-1 SCALE: 1/5 Ti' Li;:1/5 < ' l_DECKAXIS I TIM K8° cAu NHIP ~..._.·-~-·....__._~~--1...~~~~~~~~~~I I~ I 548 I 1485 HALF SECTION D-D NO'A MAT CAT D-D SCALE: 1120 Ti'Ll;:1120 NOTES:~~~~~~~~~~~~~~~~~~~~ GHI CHU: 1. ALL DIMENSIONS ARE IN MILLIMETERS. 1. TAT cAcAc K[CH THllO'c THEOElONVI MM. 2. CONCRETE GRADE FOR DECK: F'C=45 MPA (CYLINDRICAL) 2. ~ e£; TONG EJ(SI Veil e.(N MAT cAUl'o=4I; l,1pe cMAUTRl,I) 3. FOR GENERAL SEGMENt ARRANGEMEfff REFER TO DWG. NO. 3. £)£; XEM BO TRI PHAN ElOAN CHUNG XIN XEM BAN VE SO PIC-TEC-GAD-WVO-J00-18007-B TO PIC-TEC-GAD-WVO-J00-1800S-B ALENMIEITtNBAN'IE: STATUSlT1NH T~: Technicel Deeign ~ ~ I II PROJECT IMPLEMENTATION CONSULTANT PRO.ECTIDI/ ~ : HANOI PILOTUGKT METROLINE Sadlon Nhon- Hrml RalwaySlllllan .. ~ l!i , ruvJN THVCHtt;N 011AN ••c.TEC<lll<).WYG.KJ4.1lllD<l_:r.o.owe - ru~N Ell/ONG s.J.TaoTHI THI01t:MTPHANOi Eoflll Nhfin. Ge H~ NOi 5 ~ SftTRASA t ~ ..: HRB DESIGNEDBY Tll1£r~ : FORIMTl~eANv£ : DATEINGAY: TITlfTtNBANv£: NHUE RIVER CROSSING 7 i!~ 2A 3MJ.11'11 2nd•ubml11ionotlllchnlcald-.,, A.K 6 . Maurte P. Amaud A.K A1 31/01110 WQ'TSONGNHUI;: ~ ! ti t-~~~-t:~:~~;;....;-=~~00aPDA=~=-------------~~:::.;~'°'----F~'-"·::=~::::~:-'":::=::_-1 HANOIMETROPOLITANRAILTRANSPORTPROJECTBOARD Cl£Cl<EDBYsoAT : "'~"-'II"""""'"_""_,,_,.,._ __, DECK-SEGMENTSSA7'-SB7'-CONCOUT ~ i g "'"'' G Mauris ilwholeor in partorUlldforanrp~wtto.tllwpricrlllrinln ~ ~ ~ 1A m11110 Fim 18aJo A. K p, Maurie P.Amaud BAN DI/ANDUONG BATDOlHIHAN(ll 1---·--..,..---..,.......,...--1 pormiuionofHRB. BAN M~T cA.U - PHAN ElO~ SAT-SBT - ~T cAU B~ TONG - ~ I~ REVISION DATE DESCRIPTION DelllNEDl!Y IHlllEIJl!Y CllJEFOFDBD PROJECT01REC10R1GiAr.lrocD11AN : CHIEFDES1GNER1CHO NH1eMTH1~~= ..,"'""'""""""-""'•d""'""""'""'"'"'"""'~....,..., DRA'MNGN0.1BAN~SO : I~._~_~__._w_~_DOl_.__N_~_Y_.______~_1_~_NG_s_~_~_1______.~ra1_~E--~D-r _...J....00_1_llill_nEl_E_._________________J_A_la_in_B~_ch_e~_a_u___________i__~P~.~Am::.::a=ud:...._____i__...,,_~_. m_•""""_•_"-_••_o1no_t_...,_'*'_..,_,..._H_RB.___.L_____~P~l~C~-~T~E~C~-~G~D~O~-~'li/V!.!~Q~-J!!!!0~4~-1~8~3~0~5~-~B~l_;2~A~
  • 34.
    .' 548 l B 1463 1.c.·· . ·-~r__..olt)'!.--------~ - '11 ~- soo-~ -~- 4 4 ~ -~ - ~ ~~~----<~~~~~~--+-~~~~~~~~-+-~~----------"-4 -·___'~·--" ---<-~ 1000 1269 493 I 2303 HALF SECTION A-A NO'A MAT CATA-A SCALE: 1/20 ITLS:1/20 5085 B ~.----------,----------.--------.-------,------------4 I I l~DECKAXIS r TIM K8° cAU NHIP ~'----------'"---------'-------'~-------'---------~ I 1000 I 1269 I 532 I 860 VIEWC-C GOC NHlN C-C SCALE: 1/20 ITLl;::1/20 1384 I I I I i5 SB7' ,,,,,,------ ..' .' I MM I I II 1"?:i:;;o:1 SA6' " ' SA6' SB6' SA5' SB5' I I I I I I I I I I I I I KEYPLAN MAT BANG cHrNH SCALE : 1/500 IT LI;: 1/500 111f 1;1 I @ I I SB6' --------.... I " . 3000 SECTION B-B MAT CAT B-B 546 SCALE: 1/20 IT Lf;:l/20 1447 I I I I I Ht-~ I ;_Lk 1 I ~jjj_ DETAIL-1 CHI Tli;T-1 SCALE: 1/5 TY Ll;::1/5 ii I i ~ .......,-....,..---r----r------------4 ' " ..' :.. . 4. ., . 4 .. ' •4 '.' ~DECKAXIS I TIM K8° cAu NHIP ~...____,~-'-----'---------~ ~ I 548 I 1463 HALF SECTION D-D NO'A MAT CAT D-D SCALE : 1/20 ITLS:l/20 l NOTES:~~~~~~~~~~~~~~~~~~~~ GHI CHU: 1.ALL DIMENSIONS ARE IN MILLIMETERS. 1. TAT cAcAc K[CH THllO'c THEO ElON VI MM. 2. CONCRETE GRADE FOR DECK: F'C=45 MPA (CYLINDRICAL) 2. ~ e£; TONGEl(SI Veil e.(N MAT cAU l'o=4S lApe CMAU TRl,I) 3. FOR GENERAL SEGMENt ARRANGEMEfff REFER TO DWG. NO. 3. El~ XEM BO TRI PHAN ElOAN CHUNG XIN XEM BAN~ SO PIC-TEC-GAD-WVO-J00-16007-B TO PIC-TEC-GAD-WVO-J00-1800S-B ALENMIEITtN BAN'IE:~ I t----+----+-------------_.____..._______. CLIENT: II PROJECTIMPLEMENTATIONOONSULTANT PRO.ECT Dlf~ : HANOIPILOTUGKTMETROLINE SedlonNhon-HrmlRalwaySlllllan .. ~ l!i 1----+----+---------------'"---i------i.-----1 cHO aAu nr: , ru vJN rHvcH1e:N 011AN ••e-TEC<lllO-Wlt>.KJ4-1....,_:rAowe - ru~N Ell/ONG s.J.roo THITHI01t:MTPHANOi Eoflll Nhfin-Ge H~NOi ~ ~ SftTRASA t ~ ~ HRB DESIGNEDBY Tll1£r~ : FORIMTl~eANv£: DATEINGAY: TITlfTtNBANv£: NHUE RIVER CROSSING STATUSlT1NHT~: Technicel Deeign 7 i!~ 2A 3MJ.11'11 2nd•ubm1111onotlllchn1ca1d-.,, A.K 6.Mauite 1>.Amaud A.K A1 31/01110 WQ'TSONGNHUI;: ~ !ti ~~ ::~ ~::.~ ~~ :::~: :::::: HANOIMETROPOLITANRAILTRANSPORTPROJECTBOARD Cl£Cl<EDBYsoAT: "'~"-'II"""""'"_""_,,_,,.._ __, DECK-SEGMENTSSA6'-SB6'-CONCOUT ~ ~ ~ 1--1-A--+s-u-11-110--+-F-im--.------------.j..A.-K___._6_.. Ma-u-rie---i.P-.Amaud---l BANDl/ANflUONGsATflOlHIHAN(ll 1---G_._M_a_un_·s------1 =.::~~or.-roranyp,_-...111opt1or- BAN M~TcA.U - Pl-IANElO~SA6'-SB6' - ~TcAUB~T0NG ,__~ ; ~ REVISION DATE DESCRIPTION DelllNEDl!Y IHlllEIJl!Y CllJEFOFDBD PROJECT01REC10R1G1Ar.1rocD11AN: CH1EFoES1GNER1CHONH1eMTH1~~: ....... ..- • ._pti.pd•"'•"""'""'"'"''"'"·~....,.... DRAWINGNO.BAN~so: I~.__~_~__w_~_D01_.__N_~_Y_.______~_1_~_NG_s_~_~_1______.~™1_~E--~D-r _ _._00_1_11i11_11ET_E.._________________._A_la_in_B~_ch_e~_a_u___________.___P_._Am_a_ud_____.__...,,_~_. m_•""'"_•_"-_••_o1no_t_...,_'*'_..,_,.._"_RB.___-'-----~p~l~C~-~T~E~C~-~G~D::....::O~-~'li/V.:....:.~Q~-J.=..::0~4--1~8~3~0~6~-~B:..._.i....:2~A~
  • 35.
    B ,i.' .4 .<l~--~-~--1- ~ ~ L ~ ......,..._....,..,1---.- -.--.- -,_.. - . tl; . j~oo ~ J ,. 4. " o 4 4 '6 "' 4 il ~ ~-~---+--------+----------'----~---------.......----......-~-~ 1000 I 1289 565 I 2231 HALF SECTION A-A NO'A MAT CAT A-A SCALE :1~ ri' LE:1/20 5065 B - ....------------------------------------!II I I I I I I I I I I I I I I I I I I I I I I I I I I I I I I I I l...r-DECKAXIS r TIM K£T cAu NHIP ~'---------'--------....L...---'--------'----------' I 1000 I 1289 I 532 I VIEWC-C GOC NHlN C-C SCALE :1~ TYLl;::1f20 680 I 1364 I f.,,,WY4 I SA5' ~ ~· i1~SB6 SB5 SB4 SB6' SB5' SB4' I ,,,,----- ------.,._ I L:,1---1--~ ._...;·:...J__•__"J__._...;;:..,_'__-·_·_._._-·_,_._,_·_._4-1---~·-~ I ~ ~ I 1~m ~§~ I lr--+.,:a~-_...,~-::,-------~---- - --~'--'rt--l---,,..,-..--l----ll 3000 SECTION B-B MAT CAT B-B 546 SCALE: 1120 ri' Ll~:1f20 1422 I I I -.--~ ~.......~-.--I~~~~~~~~~-----, I '. /; I L __ _, I I I I I I I I I I J!?.(1 I I I I I I I I %1 I I I IS? [ I I SA5 KEYPLA~85 11r I 1&£4 I SB5' MAT BANG CH[NH SCALE : 11500 ri' LE: 11500 I I j Ht- ~· r;Lllt t I ~J.jj_ DETAIL-1 CHI Tli;T-1 SCALE: 115 Ti' Li1::115 I I I I I I I I I I I ~DECKAXIS I TIM K£T cAu NHIP ~ ~BOTTOM BLISTER TYPE 3 BOTTOM BLISTER TYPE 3 ~ SEE DWG. NO. - PIC-TEC-GD -WVO.J00-16330-B XEM EWlvEsO- PIC-TEC-GDO- °'-ICJ0.1833G-B l I ~~I_4_2_0....._1~..__,-54-a~~,~~~~14-41~~~---"1 HALF SECTION D-D NO'A MAT CAT D-D SCALE: 1120 Ti'Ll;::1/20 NOTES:-------------------- GHI CHU: 1. ALL DIMENSIONS ARE IN MILLIMETERS. 1. TAT cAcAc K[CH THllO'c THEO ElON VI MM. 2. CONCRETE GRADE FOR DECK: F'C=45 MPA (CYLINDRICAL) 2. ~ B£; TONGEl(SI Veil B.(N MAT cAUl'o=4S lApe CMAUTRVl 3. FOR GENERAL SEGMENt ARRANGEMEfff REFER TO DWG. NO. 3. Ele:XEM BO TRI PHAN ElOAN CHUNG XIN XEM BAN ye: SO PIC-TEC-GAD-WVO-J00-16007-B TO PIC-TEC.GAD-WVO.JIJ0.1600S.B ~ I t----+----+-------------_.____..._______. CLIENT: II PROJECTIMPLEMENTATIONOONSULTANT PRO.ECTI DI/ ~ : HANOIPILOTUGKT METROLINE Sedlon Nhon-HrmlRalwaySlllllan .. ~ ~ 1 - - - - + - - - - + - - - - - - - - - - - - - - - ' " - - - 1 - - - - - - 1 - - - - - - 1 CHO ewmr: , TV vAN THVCHreN 011 AN •1c.TEC<lll0-Wllt>.KJ4.1......_'"'""" - ru~N Ell/ONG s.J.TaoTHITHIDlt:MTP HANOi Eofln Nhfin. Ge H~NOi ~ ~ SftTRASA t ~ ~ HRB DESIGNED BYTll1£r~ : FORIMTl~eANv£ : DATEI NGAY: TITlfTtNBANv£: NHUE RIVER CROSSING ALENMIEITtN BANv£: STATUS lT1NHT~: Technicel Deeign 7 i!~ 2A 30oGll11 2nd•ubm1111onotlllchn1ca1d-.,, A.K 6 . Maurte 1>. Amaud A.K A1 31(01110 WQ'TSONGNHUI;: ~!ti ~~ ::~ ~::.~ ~~ :::~: :::::: HANOIMETROPOLITANRAILTRANSPORTPROJECTBOARD Cl£Cl<EDBYlsoAT : "'~"-'II"""""""_""_,,_,.,._ __, DECK-SEGMENTSSA5'-5A5-SB5-SB5'-CONCOUT ~ ~ ~ 1--1-A--+s-u-11-110--+-F-im-,_,.------------.j..A.-K_ __.,_6_.. Ma-u-rie---1-P-.Amaud---l BANDl/ANflUONGsATDOlHIHAN(ll ..__G_._M_a_un_·s-----1 =.::~~.,..-roranrp,_-...111opt1or- BAN ~Tc:AU - PHANDO~SA5'-sAS-SBS-SB5' - K~TcAU B~ TONG ..._~ ; ~ REVISION DATE DESCRIPTION DelllNEDl!Y IHlllEIJl!Y CllJEFOFDBD PROJECT 01RECTOR1G1Aro1Eioc1X,1AN : CH1EFoES1GNER1CHO NH1eMTH1£r~: ....... ........ ._,.,.pd•"'•"""'""'"'"'"""'~...,.., DRAWINGNO.iBANv£SO : I~...._~_~__w_~_D01_.__N_~_Y_.______~_1_~_NG_s_~_~_1_ _ _ ___.~™1_~E--~D-r_ _._00_1_11i11_11ET_E.._________________._A_la_in_B~_ch_e~_a_u___________.___P_._Am_a_ud_____.__...,,_~_. m_•""'"_•_"-_••_o1no_t_...,_'*'_..,_,..._"_RB.___-'------~p~l~C~-~T~E~C~-~G~D::....::O~-~'li/V.:....:.~Q~-J.=..::0~4--1~8~3~0~7~-~B:..._.i.....:2~A~
  • 36.
    1000 I B tSYMMETRY ..._~~=85=2~--~~880~~~<--~~~1~3=84~~~~~1XONG ~ 1259 s1sI 2151 HALF SECTION A-A NUA MAT CAT A-A SCALE: 1/20 ITLl;::1/20 5085 B ~.---------.---------....------,--------.-------------1 I I I I I I I ~DECKAXIS I TIM ~T cAu NHIP ~ , _ _ _______.._________,____,________..___________, I 1000 I 1289 I 532 I VIEWC-C GCC NHiN C-C SCALE: 1/20 Ti'Ll1.:1/20 880 I 1384 I I I I I I sfj. I I iffrrrmI I~~~~,~~ .:. I MAT BANG CHiNH 1 15 ' ~l l l fJ!!p,j ! . . SB4' SCALE : 1/500 SAS' SA5 SB5 SB5' SA4' SA4 SB4 SB4' SA3' Ti' LI;:: 1/500 ,,,------- 3000 SECTION B-B MAT CAT B-B 548 SCALE: 1/20 Ti' Li;:1/2D 1388 I SA3 SB3 SB3' ---....., I l 1 ~) I I I~ -...--......----,...-----.------------1 ,. I I .' /' I L _ _J I I I : r DEVIATOR TYPE 2 ~1 UCH~N HllGNG LOAI 2 1 SEE DWG. NO. - PIC-T C-ODO-WVO-J00-18332-B I XEM eAN VE SO- PIC-TE GDO-WVO-J00-18332-B __U___:1_____JJ__I _ I I I • I I I ,,• III I ~ .. ' 1---+-~I----+----------' I 00 I I DECK AXIS : TIM K8° cAu NHIP I - I BOTTOM BLISTER TYPE 4 ~ I BOTTOM BLISTER TYPE 4 SEE DWG. NO. - PIC-TEC-OD -WVO-J00-18332-B XEM BAN V~ 50 - PIC-TEG-000- . 0-J00-18332-6 t--~~~ I ~~ ....I -4""'"20-'--'1--:1==548===::1=======14:22:======:1 HALF SECTION D-D NUA MAT CAT D-D SCALE: 1/20 TY Ll;:1/20 I I j Hi-~ !;__dt t I ~Jl_ DETAIL -1 CHI Tl~T-1 SCALE: 115 IT Ll;:1/5 NOTES:~~~~~~~~~~~~~~~~~~~~ GHI CHU: 1. ALL DIMENSIONS ARE IN MILLIMETERS. 1. TAT cAcAc K[CH THllO'c THEO ElON VI MM. 2. CONCRETE GRADE FOR DECK: F'C=45 MPA (CYLINDRICAL) 2. ~ e£; TONG EJ(SI Veil e.(N MAT cA.ul'o=4I; l,1pe cMAUTRl,I) 3. FOR GENERAL SEGMENt ARRANGEMEfff REFER TO DWG. NO. 3. El~ XEM BO TRI PHAN ElOAN CHUNG XIN XEM BAN VE SO PIC-TEC-GAD-WVO-J00-18007-B TO PIC-TEC-GAD-WVO-J00-18009-B ~ I t----+----+-------------_.____..._______. CLIENT: II PROJECTIMPLEMENTATIONOONSULTANT PRO.ECT Dlf~ : HANOIPILOTUGKTMETROLINE SedlonNhon-HrmlRalwaySlllllan .. ~ l!i 1 - - - - + - - - - + - - - - - - - - - - - - - - - ' " - - - i - - - - - - i . - - - - - 1 cHO aAu nr: , ru vJN rHvc Hl~N 011 AN ••c.TEC<lll().Wllt>.KJ4-1lllDMl_:r.o.owe - ru~N Ell/ONG s.J.roo THITHI01t:M TP HANOi Eoflll Nhfin - Ge H~NOi ~~ SftTRASA t ~ ~ HRB DESIGNEDBY Tll1£r~ : FORIMTl~eANv£ : DATEINGAY: TITlf~NeANv£ : NHUE RIVER CROSSING ALENMIETtN BAN~: STATUSIT1NH T~: Technical Deeign 7 i!~ 2A 3MJ.11'11 2nd•ubm1111onotlllchn1ca1d-.,, A.K 6 . Mauite 1>. Amaud A.K A1 31/01110 WQ'TSONGNHUI;: ~!ti ~~ ::~ ~::.~ ~~ :::~: :::::: HANOIMETROPOLITANRAILTRANSPORTPROJECTBOARD Cl£Cl<EDBYsoAT : "'~"-'II"""""'"_""_,,_,,.._ __, DECK-SEGMENTSSA4'-5A4-SB4-SB4'-CONCOUT ~ ~ ~ 1--1-A--+s-u-11-110--+-F-im--.------------.j..A.-K_ __._6_.. Ma-u-rie---i.P-.Amaud---l BANDl/ANflUONGsATDOlHIHAN(ll 1---G_._M_a_un_·s------1 =.::~~,...-roranrp,_-...111opt1or- BAN~Tc:AU - Pl-IANDO~SM'-5A4-SB4-SB4' - K~TcAU B~ T0NG ...._~ ; ~ REVISION DATE DESCRIPTION DelllNEDl!Y IHlllEIJl!Y CllJEFOFDBD PROJECT01RECTOR1G1Ar.1roc1X,1AN: CH1EFoES1GNER1CHONH1eMTH1~~: ....... ....... ._""•pd•"'•"""'""'"'"'"""'~...,.., DRA'MNGNO.ieAN~so : I~._~_~__._w_~_DOl_.__N_~_Y_.______~_1_~_NG_s_~_~_1______.._.™1_~E--~D-r _ _._00_1_11i11_11ET_E.._________________._A_la_in_B~_ch_e~_a_u___________.___P_._Am_a_ud_____.__...,,_~_. m_•""'"_•_"-_••_o1no_t_...,_'*'_..,_,..._"_RB.___-'-----~p~l~C~-~T~E~C~-~G~D::..::O~-~'li/V.:..:.~Q~-J.=..::0~4--1~8~3~0~8~-~B:_..L...:2~A~
  • 37.
    1000 1000 .; -4 , - ~ 548 ''...r--'-d4 -.,d'·'..~- 1299 e1a I 1289 HALF SECTION A-A NO'A MAT CAT A-A SCALE: 1/20 TYLE:1/20 5085 639 9ao 2122 e 1240 B 1226 ~ ..-~~~~~__,.~~~~~~~~-.-~~~~~~~~~--~~~~~~~--I I I I I I I I I I I I I I I I I I I I I l I I I I I I I I l I I I I I I I I I I I ~DECKAXIS I TIM ~TcAIJ NI ~._~~~~~........~~~~~~~~_,_~~--'~~~~~---"~~~~~~~~--+ VIEWC-C GOC NHlN C-C SCALE: 1/20 Ti'LE:1/20 §.., paj SA3' t"""' ~· ~ )i~SB4 sea se2 se4• sea· se2· I , - --------.._ I I ~ . "' • 4, • • ··_. , • • • 4 • ~ ,---~l!---t--~~~~~.......~~~~~~·~'-- ~~·.........;.....~----4+--~-l(l;j .., I~ I 527 548 aooo SECTION 8-8 MAT CAT B-B SCALE: 1/20 TY Ll;:1/20 1240 I I I ~ -.~~~~~l~~~~~~~~----'1 "'··d. '. ' iL _ _ ~ I ! I ! I I I l I I I I l DECKAXIS I"-TIM K£T cAU NHIP I I I I I I I I I - LBOTIOM BLISTER TYPE 5 ~­ BOTTOM BLISTER TYPE 5 SEE DWG. NO. - PIC-TEC-G O-WVO-J00-18330-e XEM BANVE SO - PIC-TEC-GDO' OC>-18330-B 1--~~~ i ~ ----.......~~...._~~........~~~~~~~~---1 ~ 1..._~54=0~..._1 ~~-1=~=0.__~~~I HALF SECTION D-D NCrA MAT CAT D-D SCALE: 1/20 TY L1~:1/20 I I I I I I II I I I I I@ KEYPLAN sea MAT BANG cHrNH SCALE : 1/500 TY L!;: 1/500 11, 11t#A I II II Iiisea• I 1 J -Jj- ~I r;_,ili_ f I ~L DETAIL-1 CHI Tl~T-1 SCALE: 115 TYLl;:l/5 NOTES:~~~~~~~~~~~~~~~~~~~~ GHI CHU: 1. ALL DIMENSIONS ARE IN MILLIMETERS. 1. TAT cAcAc K[CH THllO'c TliEOElONVJMM. 2. CONCRETE GRADE FOR DECK: F'C=45 MPA (CYLINDRICAL) 2. ~ e£; TONGEl(SI Veil e.(N MAT cAUl'o=4S J.1pe CMAUTRl,I) a.FOR GENERAL SEGMENt ARRANGEMEfff REFER TO DWG. NO. 3. El~ XEM BO TRI PHANElOAN CHUNG XIN XEM BANVE SO PIC-TEC-GAD-WVO-J00-18007-B TO PIC-TEC-GAD-WVO-J00-1800S-B ~ :l: I II PROJECT IMPLEMENTATION CONSULTANT PRO.ECTI DI/ ~ : HANOI PILOTUGKT METROLINE Sadlon Nhon- Hrml RalwaySlllllan .. ~ l!i , ru vJN THVC Hl~N 011 AN "'"'TEC<lll().WY<>.KJ4.1....,_,.,owe - ru~N Ell/ONG s.J.TaoTHI THI01t:MTP HANOi Eoflll Nhfin-Ge H~ NOi 5~ SftTRASA t ~ ..: HRB DESJGNEDBY Tlli£r~ : FORIMTl~eANv£ : DATEINGAY: TITlf~NeANv£ : NHUE RIVER CROSSING ALENMIETtN BAN~: STATUSIT1NH T~: Technicel Deeign 7 i!~ 2A 3MJ.1/'1 1 2nd•ubml11ionotlllchnlcald-.,, A.K 6 . Maurte P. Amaud A.K A1 a1/01/10 WQ'TSONGNHUI;: ! ! S t-~~~-t:~:~~;;.._;-=~~00aPDA=~=------------~~:::.;~'°'----F::..:::::=~::::~:"'":::=::_-1 HANOI METROPOLITAN RAIL TRANSPORT PROJECT BOARD Cl£Cl<ED BYsoAT : "'~•-'II"""""',._.,._,,_,.,._ __, DECK - SEGMENTS SA3'-5A3-SB3-SB3' - CONC OUT ~ ~ ~ 1A m11110 Fir"118aJo A.K p . Maurie P.Amaud BANDl/ANflUONGsATDOlHIHAN(ll 1--G_._M_a_u_ris..,...--....,.........,....-1 =:.::~~.,..-ror.,,,.p._w111oo.1111opt1or- BAN~Tc:AU - Pl-IANDO~SA3'-5A3-SB3-SB3' - K~TcAU B~ T0NG - ~ I~ REVISION DATE DESCRIPTION DelllNEDl!Y IHlllEIJl!Y CllJEFOFDBD PROJECT01REC10R1G1Ar.1rocD11AN: CH1EFoESJGNER1CHONH1eMTH1~~: ..,"'""'""'"" "-""'pd•"'•"""'""'"'"'"""'~...,.., DRA'MNGN0.1BAN~so : I ~._~_~___._w_~_D01_.__N_~_Y_._~~~~~~-1_~_NG_s_~_~_1~~~~--'~ra1_~E~~~D~r ~-'-oo-1_llill_nEl~E..._~~~~~~~~~~~~~~__J-A_la_in~B~_ch~e~_a_u~~~~~~~~~~...L~~P~.~Am:..:.::a=ud:..._~~~...L-...,,~~-·m_•""""~•-"-~••_o1no~t-...,~'*'-..,~,...-"_RB.~~~-L~~~~~p~l~C~-~T~E~C~-~G~D~O~-~'li/V!.!~Q~-J!!!!0~4~-1~8~3~0~9~-~B~l...;2~A~
  • 38.
    ~ ~ ';;; l!; .. nt~ ~7 i ~ ! ! ti ~ ~~ ~ ',!! ~ n0.. 2A 1C DETAIL 1 CHIT! T1 1000 SLOPE1% EO dOc 1% 1289 5085 639 930 , 4 HALF SECTION A-A NO'A MAT CAT A-A SCALE: 1/20 TYLS:1120 I I I I I I I I I I I I I I 5085 TOP BLISTER TYPE 7 I TOP BUSTI:~ TYPE 1 SEE DWG. rNO. - PIC-TEC-GDO.wv~cl>o-18355-B XEM BAN VEISO-PIC.TEC-ODO-WVO.J00-18355-8 1000 1289 I I I I I I I I I I I I I 639 ,--- -- - 11 II II II II II II II II 11 II II I I I I I I I I I I I I I I Ir I 11 I 111- - 1 I ::--=--=--=-.:-.=SI 930 VIEWC-C GOC NHiN C-C d'. SCALE: 1/20 TYLS:1120 I I I I I I I I I I I I I t¥ttj KEYPLAN MAT BANG CHfNH S82 ~II 3MJ.1111 2nd .subml111lon ofl&dinlcaldea9'1 2Mllltl0 u 1lld SCALE : 11500 TYLS: 1/500 A. K A. K SYMMETRY 1226 ~ A '• filN 1240 I DECKAXIS r TIM K£T cAU NHIP 1226 "'' HRB 18 ZW&'"IO UPDATED 1A 3U J1110 Fim-. A. K HANOI METROPOLITAN RAIL TRANSPORT PROJECT BOARD t----+-----+---------------4-A.-K_ __.__ __.__ _-l BAN Dl/ANflUONGsATDOlHIHAN(ll REVISION DATE SC/ADO! NGA.Y DESCRIPTION NQI DUNG SO'A DOI DelllNEDl!Y 111itl"K£ "'1EfSA3 SB3 5B3' ,,------- fil , 0 ~ ; N 4 M filM .. SA2.' SA2. SB2 582' '. <l. . .. 3000 ~SA1' TSA1 SB1 SB1' ---------..... § M 527 4 ' , 4 548 I l I L __ --' I I I I I I I I I I I I I I I I I I I I I I I I I I 1189 ' I DECKAXIS J TIM ~T cAu NHll - BOTTOM BUSTERTYP.l BOTTOM BLISTER TYPE B fSEE DWG. NO. - PIC-TEC DO.WV~00-18330-B XEM BAN vE s0 - PIC-TEC-G WVO.J00-16330-B SECTION B-B MAT CAT B-B 4 I 521 I 548 I 1240 HALF SECTION D-D NO'A MAT CAT D-D SCALE: 1120 J I ~DETAIL-1 CHI Tli;T-1 SCALE: 1/5 TYLS:1/5 TYLS:1120 PROJECT IMPLEMENTATION CONSULTANT TU VJN THVC HISN DIJ AN SYSTRAS.A PROJECTDIRECTORIGIANElOcD./AN : Alain B'9chereau ALENMIEITtN BAN'IE: DESIGNED BYTll1£r~ : A. K DETAIL 1 CHIT! T1 1000 SLOPE 1% f>Od6C 1% • 0 1289 FORIMTI~BAN v£ : A1 5085 639 SCALE: 1/20 TY LS:1120 930 L I: , I •-~ <1 .<:J • . '!!· 2055 1226 D 1189 8 "' HALF SECTION E-E NO'A MAT CATE-E (")SCALE : 1/20 TY LS:1120 NOTES:~~~~~~~~~~~~~~~~~~~~ GHI CHU: STATUSlT1NHT~ : Technical Deeign DATEINGAY: 31/01110 1. ALL DIMENSIONS ARE IN MILLIMETERS. 1. TAT cAcAc K[CH THllO'c 11-IEOEONVI MM. 2. CONCRETE GRADE FOR DECK: F'C=45 MPA (CYLINDRICAL) 2. ~BE TONGE(SI Veil B.(N MAT cAUl'o=4S J.1pe CMAUTRl,I) 3. FOR GENERAL SEGMENt ARRANGEMEfff REFER TO DWG. NO. 3. EiS XEM BO TRI PHANElOAN CHUNG XIN XEM BANvE SO PIC-TEC-GAD-WVO.J00-18007-B TO PIC-TEC-GAD-WV~00-18009--B PRO.ECTI Dll AN : HANOI PILOTUGKT METROLINE Sadlon Nhon- Hrml RalwaySlllllan ru~N WONG sATflO THITHIDlt:M TP HANOi Eo911 Nh&i -Ge H~ NOi TITlfl~NeAN~ : NHUE RIVER CROSSING WQ'T SONG NHUI;: Cl£Cl<EDBYsoAT : no~ •-.-.i """"" '" _""_,,_,.,._ __, DECK - SEGMENTS SA2'-8A2-SB2-SB2' - CONC OUT G. Mauris ~ whol1 or in port<r.- for anyp,_ w111oo.1111opr1or- 1-------------1 perm~~dHRB. CHIEFDESIGNERICHOi'fileM THI~ ~ : ..."'. ..""'"•._....pd . .....,.,, '""hlm ' "'"· ~........ P. Arnaud """bO,m•""'"•"-••<Doot...,..,..,,..HRB. 2A BAN ~T c:AU - PHAN ao~ SA2'-5A2-SB2-SB2' - K~T cAU B~ TONG DRA'MNGNO.BAN~ SO : PIC-TEC-GDO-WVO-J04-18310-B
  • 39.
    B I SYMMETRY . --508_.....5-__--'-~---==---~'----~~-------<~~IXCING~- 639 930 1226 ~ 548 1189 I • 0 a ·• d I I -. L I ~ ~,...-~: 1.,·.,so·o·-~j----1·....,._~-.-.-~...«--"'"'"i- _1__L____j_ _ _ _ _ __.__ _ _ _ _ _ _ _+----- .<€~ • ' q ; q • ~ • • "' • . ~~ 1000 I 1289 741 I HALF SECTION A-A NO'A MAT CAT A-A SCALE :1m TYLl;:1/20 5085 2055 B ~---------------...----------------------- ! DECKAXIS rTIM K£T cAU NHIP I I I I I I I I I I I I I I I TOP BLIST~R TYPE 7 ; TOP BLISTE~_TYPE 7 SEE DWG.1NO. - PIC-TEC-ODO-WVO.JQ0-18355-B XEM BAN~ SO - PIC-TEC-GOO-WVO-J00-18355-B I I I I I I I I I I I I I ,------11 I II I II I II I II I II I II I II I II I II I II I II I I I I I I I I I I I I I I I I l ! 11 I 11 I 11 I 11 I l1r--1 I l:--=--=--=-.:-~I ~L---------L--------....l....---.....J..--------l---------- I 1000 I 1289 I 639 VIEWC-C GOC NHlN C-C SCALE: 1120 TYLl;:1/20 I 930 L---L-----L--------------4----1-----+-----I CLIENT: L---L--~---------------+----1------+-----I CHOEIAUnr: 2A 3MJ.1/'11 2nd•ubml11lonoflllchnlcald-'11l A.K r.. Maurte 0 . Amaud 1226 I HRB 1C 2Mllltl0 Uodatlld A. K r.. Maurte 0 . Amaud ~1~8---1:zw=::&'"l~O~~U~PDA~JED~-----------+::A.:::.:K.:....__-FG.:..::Ma:::u::.:rio'-fo..:..:.Amaud==--~ HANOI METROPOLITAN RAIL TRANSPORT PROJECT BOARD 1A 3UJ1110 Fir"118aJo A. K G. Maurie P.Amaud BAN DI/ANDUONG BAT DO THI HAN(ll REVISION DATE DESCRIPTION DelllNEDl!Y IHlllEIJl!Y CllJEFOFDBD SC/ADO! NGA.Y NQICUNGSO'ADOI lllitl"IE DI OONlfillnETIE I I SAZ SB2' ,,.------ 0 SA1' SB1 •. I I I !!!l~lllll'SA11It'SA1 I I ! I I I I I I I I I I I I KEYPLAN MAT BANG CH[NH • SCALE : 1/500 TY LI;:: 1/500 I I Hi- ~· I ;Lill t l 11 I I I II Iii " ~r~:t1=:..~·==·~· =·=·=·=·=·=·=·=·"~·~·~:.~.~~J.~~u ~_ijj__ DETAIL-1 CHI Tli;T-1 SCALE: 1/5 TYLl;:1/5 II 524 3000 SECTION B-B MAT CAT B-B • SCALE :1m TYLl;:1/2D 548 r I 1128 - -.---..........----...------r-----------~I .' ... _.;, ·_. 'I q ' l DECKAXIS I - TIM KElcAU NI c_L.;..................J..._......1.._ _ _......__ _ _ _ _ _____,, I 524 I I 548 I 1189 HALF SECTION D-D NO'A MAT CAT D-D SCALE: 1m TYLl;:1/20 PROJECT IMPLEMENTATION CONSULTANT TV VJN THVCHle:N DIJ AN ALENMIEITtN BAN'IE: SYSTRAS.A DESIGNED BYTll1£r~ : A. K FORIMTI~BAN v£ : A1 STATUSlT1NH T~: Technical Deeign DATEINGAY: 31/01110 Cl£Cl<EDBYsoAT : n.~•-.-.i"""""""_""_,,_,,.._ __,G. Mauris ~whol1or in portot.-foranyp,_w111oo.1111opr1or- PROJECT DIRECTORIGIANElOcD./AN : l--------,......,----1 perm~~dHRB. CHIEFDESIGNERI CHOlfileM TH1£r ~ : ..."'. ........._ ph6pd . .... . ,.,, '""hlm .....~........ Alain B'9chereau P. Arnaud """bO,m•""""•"-••<Dlot...,..,..,,...HRB. N O T E S : - - - - - - - - - - - - - - - - - - - - GHI CHU: 1. ALL DIMENSIONS ARE IN MILLIMETERS. 1. TAT cAcAc K[CH THllO'c THEO ElON VI MM. 2. CONCRETE GRADE FOR DECK: F'C=45 MPA (CYLINDRICAL) 2. ~BE TONGEl(SI Veil B.(N MAT cAUl'o=4S l,1pe CMAUTRVl 3. FOR GENERAL SEGMENt ARRANGEMEfff REFER TO DWG. NO. 3. ElEXEM BO TRI PHAN ElOAN CHUNG XIN XEM BAN~ SO PIC-TEC-OAD-WVO-J00-18007-B TO PIC-TEC.GAD-WVO-J00-16009-B PRO.ECTI DI/AN : HANOI PILOTUGKT METROLINE Sadlon Nhon- Hrml RalwaySlllllan ru~N WONG sAT00 THI THIDlt:MTP HANOi Eo911 Nh&i· Ge H~ NOi TITlfl~NBANv£ : NHUE RIVER CROSSING WQ'T SONG NHUI;: DECK- SEGMENTS SA1'-5A1-SB1-SB1' - CONC OUT BAN ~Tc:AU - PHANao~SA1'-8A1 -SB1 -SB1 ' - K~TcAU B~ TONG DRAWINGNO.lBANvE so: IPIC-TEC-GDO-WVO-J04-18311-B 2A
  • 40.
    ~ ~., t7 !~ ~a.. SA1' I ,---------- 0 .. ' ~ 4 I "cl'l DETAIL 1 CHITll:T1 1000 ' . ' 4 4 y SLOPE1% fl() d6c 1% ' . D 5085 ,. 1289 896 . . ' HALF SECTION A-A NO'A MAT CAT A-A <. SCALE: 1/20 TYLl;::1/20 11 L.1;;.l l olCU E{ 4 . .4 '.~- =-- --.... ' ,_ a I 4 ~ . o:l. <1 :1- ., ". 4 . 1 ¥1ERP152 D<>• L,J P152 I a 4 o ... tl,l s ' 4 . •· . ~,4 4.. ,_ l-~I a· 0 "' - ~ <I _<1 IO I.., I ~ . .., .' ' •'.·4 4 ..I , . : " ~ ~ ., .I I .II 1111 I L~I I (lrtiI lll en I L_j)--JJ..--( II 0 en ~ 0 !':l.... ~ I ..- - I 1il) ~ .., ~:;r:i:-:f I-- - -- - 3rM c 3 I .lll I 0 CIO N . .. I ~. ~ .. ' H 4 ~ 4 ' • 4 ,. . 4 . ' . • I s IO •.4 <d- ' ' . . 4 . .. 4 4< .4 . ' ' '<l·.. . . 0 ' 4 . . ' 4 ' 4 - ·1 .,~- .4 . 4 ' . 4 . . .. 4. g. f6' ir .,. ," ..... . . . . ' j • 4_, 4 _, .~ " _, . . . . 4 - 4 4 . - I I 2750 3500 9000 SECTION B-B & MAT CAT B-B Il!; ~ ~ ~ {i ~~ SCALE: 1/20 TYLl;::1/2D 1-----+-------------------+----+---+----t CLIENT: t - - - - + - - - + - - - - - - - - - - - - - - - - + - - - - + - - - + - - - - - 1 CH0£lAUT~ 2A 30A'.Ml11 2r<l aubmll1lon ol 18"1nlcal d""91 A. K HRB ' . a 4 ' 4 • 4· ' ., . .4 ,. . 4 4 ·. -~ 4 .' '.4 I 4 !~ 1C 2M'.IB/10 u lad I ~ 18 23.118110 UPDA"JE) A. K t--=--F"-=""'-+"==--------------+-A.'"-'K'"----+"-==-+~=--1 HANOI METROPOLITAN RAIL TRANSPORTPROJECT BOARD 1A 31A'.11110 ~ '!!! B REVISION DAlE S(fA llOI NGAY Finll i... DESCRIPTION NQI DUNGSCIA901 A. K BAN llllAN flUONG8AT00THI HAN()I DElllliEDBY 1111tr~ illlllEDBY !OIT . ' . . 4 44 . ,, 4 ·4 4 ;; a ' 4 ------- ~ 4 , . 4 .. ' ' ., "·. .. 4 ' . .4 ' .. 4' '. ., 4 . . 2750 •PROJECT IMPLEMENTATIONCONSULTANT 1V V11<1 THVC HIENDIJ'AA SYSTRAS.A PROJECTDIRECTORI GIAN 90c Ill/AN : Alain B6chereau . ' ;, .a 4 . 4 DETAIL 1 CHI Tll:T1 1000 SA1 ----------... 0 ' ~ ~~ 5l.., en lll ~ CJ> N lll I M ' . -~ ~. IO ' ." ;N E FILENMIE TtN BAN'IE : DESIGtlEllBY1H1£rKl:: A.K 5085 1289 896 '. 4 ,4 .. 500 B D ..... ' . 8 ~ ' 236 1900 HALF SECTION A'-A' NO'A MAT CATA'-A' SCALE : 1/20 TY Ll;::1/2D STA.TUSITINHT~ : Technical Design DATE NGAY: 31/01/10 SCALE : 1/5 TYLl;::115 NOTES: ~~~~~~~~~~~~~~~~~~~~~ GHI CHll: 1. ALL DIMENSIONS ARE IN MILLIMETERS. 1. TAT cA cAC KICH THIJ()'c THEOElO'NVI MM. 2. CONCRETE GRADE FOR DECK: F'C=45 MPA {CYLINDRICAL) 2. C$.P Bl: TONG EOI Vcll BAN MATcAUl'c=46 r-,ApeIMAUlRl,I) 3. FOR GENERAL SEGMENtARRANGEMENT REFERTO DWG. NO. 3. El: XEM BO TRI PHAN EOAN CHUNG XINXEM BAN~SO PIC-TEC-GAD-WVO-J00-18007-B TO PIC-TEC-GAD-WVO-J00-18009-B PRO.ECTIDI/AN: HANOI PILOT UGKT METROLINE SectionNhon-Henol Ralway Slldlon ruvt:NOlfOt.lG sAT00llllmlOlt:M TP HA NOi Elof,rl Nh6'! -Ge HANOi Tm.ETtNBAN'IE : NHUE RIVER CROSSING WQ'T SONG NHue DECK - SEGMENT PS1 - CONC OUT - 1 / 2 BAN ~T cAU - PHAN OO~N PS1 - K8' cAU B~ TONG - 1/ 2 DRAWINGNO. BAN'IESO: PIC-TEC-GDO-WVO-J04-18312-B 2A
  • 41.
    I I I I I I I I I I I I I I I :§I <'? I I I I I I I I I I I I I I I I I I I I I I I I I I I I I I :§I <'? I I I I I I I I I I I I I I I I I I I I I I I I I I I I I I I 1§ I<'? I I I I I I I I I I I I I I I I ~ 1-------T~I I i iI I I H::tI I I I I I I I I I I I I I I I I I I I I I I I I I I I I I I I:._____ L _ ___ __ _ _l I~~-----------------------_._______......__.________, I: 1000 1289 639 5085 VIEWC-C GOC NHlN C-C SCALE: 1/20 T'i' L!'::1120 930 1226 :I 527 4 .' " a 548 1128 • 4 548 1066 HALF SECTION D-D NO'A MAT CAT D-D SCALE: 1/20 T'i' Ll~:1/20 I I I I I I I I I I I I I I I I I I KEYPLAN MAT BANG CH[NH SCALE: 1/500 T'i' Li;: 1/500 548 1 11, 11 111 11 1 1128 I __ ___1 .....;g=+-------! - ~ I 500 ~ "f ~~~~+--~~~~~~+--~~~~~~~~-'-~~~~-~-------------~ -~ 1000 1289 818 I HALF VIEW E-E NO'A MAT E>O'NG E-E SCALE: 1/20 T'i' Li;::1120 1978 B NOTES:-~~~~~~~~~~~~~~~~~~~­ GHI CHU: 1.ALL DIMENSIONS ARE IN MILLIMETERS. 1. TAT cAcAc K[CH THllO'c TliEOElONVJMM. 2. CONCRETE GRADE FOR DECK: F'C=45 MPA (CYLINDRICAL) 2. ~Bl': TONG EJ(SI Veil B.(N MAT cA.ul'o=4I; l.1pe cMAU TRl,I) 3. FOR GENERAL SEGMENt ARRANGEMEfff REFER TO DWG. NO. 3. El~ XEM BO TRI PH.'.N ElOAN CHUNG XIN XEM BAN VE SO PIC-TEC-GAD-WVO-J00-18007-B TO PIC-TEC-GAD-WVO-J00-18009-B ~ 1 o----+---+---------------_.____..__ ___.....__ __, CLIENT: II PROJECTIMPLEMENTATIONOONSULTANT STATUSlT1NHT~: PRO.ECTl Dl/ AN : HANOIPILOTUGKT METROLINE Sedlon Nhon-HrmlRalwaySlllllan ~ ! CHO~•" n ~ TV V.'..' THVC Hl~N DIJ ,., Technical Deeign .. ~ l!; l----+---+---------------_._---+------ii-------1 """' 'Vo • "" ~ ,.., PIC.TEC<llX).Wllt>.KJ4.lal1H_:rADW<> - ru~N Ell/ONG sATOO THI THIDlt:MTP HANOi Eoflll Nhfin-Ge H~ NOi ~ ~ SftTRASA t ~ ~ HRB DESIGNED BYTll1£r~ : FORIMTl~eANv£ : DATEI NGAY: TITlf~NeANv£ : NHUE RIVER CROSSING ALENMIETtN BAN~: 7 i!~ 2A 3MJ.11'11 2nd•ubm1111onotlllchn1ca1d-.,, A.K 6 . Mauite 1>. Amaud A.K A1 31/01110 WQ'TSONGNHUI;: ~ ! ti ~~ ::~ ~::.~ ~~ :::~: :::::: HANOIMETROPOLITANRAILTRANSPORTPROJECTBOARD Cl£Cl<EDBYsoAT : "'~"-'II"""""'"_""_,,_,.,._ __, DECK-SEGMENTPS1 -CONCOUT-2/2 ~ ~ ~ 1--1-A--tl-31-m-111_o_F__i'"1________________.,.A._K_ __.,.6_.. Ma-urie---11-P.-Amaud-----I BANDl/ANflUONGsATflOlHIHAN(ll __G_._M_a_u_ns______. =.::~~or-foranyp-wlhoo.llhoprior- BAN M,!..TcAU - PHANOO~N PS1 -mcAu B~TONG - 2 / 2 ...._~ ; ~ REVISION DATE DESCRIPTION DelllNEDl!Y IHlllEIJl!Y CllJEFOFDBD PROJECT01REC10R1GIAMrocD11AN , CH1EFoES1GNER1CHO l'fi1eMTH1~~: ....... ....... ._,.,.pd•"'•"""'""'"'"''"'"·~...,.., DRA'MNGNO.BAN~so : I~~~-~___.~w-~_D01__._NGA:_Y___.._______N0_1_~_N_G_sa_A_D0_1_______.~™-1~E--_._D_r_ __._00_119_11ET_E.._________________.__A_la_in_B_~_ch_e_~_a_u___________L-_P_._Am_a_u_d____...1..._...,,_~_. m_•""'"_•_"-_•_•.en.__'...,_'*'_..,_,..._"RB.------'----__:p:....:..1C=---T.:...=E~C~-~G~D::..:O~-~V'/V..:..:~Q~-J..::.:0~4~-~1~8~3~1~3~-~B:.._..L...:2=A:..:...J
  • 42.
    B 5085 5085 SYMMETRY SLOPE1% l')Od6C1% 1226 SLOPE 1% flO d6c 1% I Xli~ DETAIL 1 CHITl~T1 1000 D 1289 896 DETAIL 1 CHI TIET 1 1000 HALF SECTION A-A NO'A M~T CAT A-A SCALE: 1/20 TYLS:1/20 I ~ d ~4 ._ 4 < f 4 4 < t , ·"' d~ ~ """' d <I. "4 A . ., ...,,. ir--t-.M•t--i---.......----------.............------------.')j, l r--r-~'l--t----------------------t~ ;· L_+-+-+---------....,,,........~------:;_---------4 I ~ I I :.. 4 4 I ., .d <1 4 4 <I <l .a. 4 4 ..., - .a. . d -¢ fil: I ·~ ...;.-..".l :....':.(~11_,·,:______"_·___·_.__·__·_-___._~__·- -:-i---r--1'1· . .. :. '. !. . : 1~;,-i____________________..,+-+--"I I Hr--1f.1 I I f-----{LJ.j_LJ : ~ ~ I 1 1 I - I ~ N I I 310 ~_.,,/~---- ) I .,._ll'llL'3 l~frll~t=~====----------J iii I _ ... ·- - rll J I • • • ~ I _ -. , - .. I 2750 I 9000 SECTION B-B M.ATCATB-B SCALE: 1/20 TYLE:1/20 I 2750 I 1289 896 . ' . .I< 4: .' •. . ' ' ,. •rJ$J " • 548 1066 ' .' ·1,__4 ~.~. ~----~----< . . . " .,·.4 4 . .<. ___.__~_~~-,-.-+-.....+- • d ..:_ - - .' ..' HALF SECTION A'-A' NO'A M~T CATA'-A' SCALE: 1/20 TY Ll;:1/20 SCALE : 1/5 TYLE:1/5 j I NOTES:~~~~~~~~~~~~~~~~~~~~~ GHI CHU: 1. ALL DIMENSIONS ARE IN MILLIMETERS. 1. TAT cAcAc K[CH THllO'c TliEO flON VI MM. 2. CONCRETE GRADE FOR DECK: F'C=45 MPA (CYLINDRICAL) 2. ~ B~ TONG fl(SI Veil B.(N MAT cAUl'o=4S l,1pe CMAUTRl,I) 3. FOR GENERAL SEGMENt ARRANGEMEfff REFER TO DWG. NO. 3. EieXEM BO TRI PHANElOAN CHUNGXIN XEM BANveso PIC-TEC-GAD-WVO-J00-18007-B TO PIC-TEC-GAD-WVO-J00-18009-B o----+---0-----------------+----+-----1>------i CLIENT: II PROJECT IMPLEMENTATIONCONSULTANT ALENMIEITtNBANvE: SCALElrr~: STATUST1NHT~ : PRO.ECTIDll AN : HANOI PILOTUGKT METROLINE Sadlon Nhon-Hrml RalwaySlllllan ..~ ! 1----+---1-------------------+-----11-------1 CHO EIAU nr: • TV VJN THVCHISN DIJ AN PIC.TEC<llX).Wllt>.KJ4.1D1..._:rADWe Technicel Deeign ru~NEll/ONG sAT00 THITHIDlt:MTP HANOi Eoflll Nhfin. Ge H~NOi •• SYSTRA S.A :.: n HRB aes1GNED BY1rn1£r~ : FORJMn~BANv£: DATEINGAY: rru1~NBANv£ : NHUE RIVER cRoss1NG i ~ i 2A 3MJ.11'11 2nd•ubm1111onotlllchn1ca1d-.,, A. K A. K A1 31/01110 WQ'TSONG NHUI;: n ! ti 1--1 "'c---1""2Ml""11t1~o-+-u=""111c1'--------------+-A.""K'----F'-'==--+'~=--i HANOI METROPOLITAN RAIL TRANSPORT PROJECT BOARD Cl£Cl<EDBYsoAT: "'~"-'II"""""'"_""_,,_,.,._ __, DECK- SEGMENT PS2 - CONC OUT-1/2 ~ ~ ~ ~= ::~ ~::= ~ ~ BANDl,l'ANflUONGsATDOlHIHAN(ll __G_._M_a_u_ris...,....----,.....,.---1 =.::~~...-foranyp- wllloo.llhoprior- BAN M,!..TcAU - PHANOO~N PS2 - mcAu B~ TONG - 1 / 2 ~ Ii ~~ ~ NQ?~:~~:o, ~r :mBf =~~E ~~i~:~=~~ 6 uw..eocDlfAN: CHIEFD~=~~:NHieMTHl£r~: :.:~~.=.-=.~:~":"..:.::.:.·:~:.~......... DRA'MNGNO.lBANvE~lc-TEC-GDo-wvo-Jo4-1B314-B 2A~...___.____.___.________________.....___.......__...____._________________...._________________.___________.....________________.____________________......____,
  • 43.
    I I I I I I I I I I I I I I I I I I I I I I I I I I I I I I I I I I I I~ ,------- T I I I I I I II I I I I I : I I : : : I i n:30 : I : ~O I I I I 8 I . i ~ i i iI i iI i ~'-------1 1 i I i I i ~ i iI I I : i~ L..._______.____ _____.._______..___...........i..,------1 < ,. ' ·. .< . ~. ' '< 548 1066 I 1 - 1_ _1_0_00______1_28_e____I _5D"""':,,...e__1_ _ _93_0______1_22_s___1 I 521 I I 548 I 1128 I VIEWC-C GQC NHiN C-C SCALE: 1/20 TYL1;':1/20 L---L------1--------------4----1-----+-----I CLIENT: L-~-L-~~~~~~~~~~~~~~~--+-~~~l--~-+~~---1 CHOEIAUnr: 2A 3MJ.1/'11 2nd•ubml11lonoflllchnlcald-.,, A.K r.. Maurte 0 . Amaud HRB HALF SECTION D-D NUA MAT CAT D-D II SCALE: 1/20 ti'LS:1/20 PROJECT IMPLEMENTATION CONSULTANT TV VJN THVC Hl~N DIJ AN SYSTRAS.A 1C 2Mllltl0 Uodatlld A. K r.. Maurte 0 . Amaud ~1~8---1:zw=::&'"l~O~~U~PDA~JED~-----------+::A.:::..:K.:___-FG.:..::Ma:::u::.:rio'-fo..:..:.Amaud==--~ HANOI METROPOLITAN RAIL TRANSPORT PROJECT BOARD PROJECT DIRECTORIGIAMElOcD./AN : Alain B'9chereau 1A 3UJ1110 Fir"118aJo A. K G. Maurie P.Amaud BAN DI/ANDUONG BAT DO lHIHAN(ll REVISION DATE DESCRIPTION DelllNEDl!Y IHlllEIJl!Y CllJEFOFDBD SC/ADO! NGA.Y NQICUNGSO'ADOI lllitTIE DI OONlfillnETIE I 11 1 1111 1, LII ! I I I I I I I I I I I I II II I II 111KEYPLAN MAT BANG CH[NH • SCALE : 1/500 ti' LS: 1/500 B - DETAIL 1 "')..l CHI Tl~T 1 'C#/.. 548 1128 l _[__.I..__1---------+---------+-----~"'---------------' -~ 1000 1289 818 I 1976 HALF VIEW E-E NUA MAT DUNG E-E ALENMIEITtN BAN'IE: DESIGNED BYTll1£r~ : FORIMTI~BAN v£ : A. K A1 STATUSlT1NHT~: Technical Deeign DATEINGAY: 31/01110 Cl£Cl<EDBYsoAT: n.~•-.-.i"""""""_""_,,_,.,._ __,G. Mauris ~whol1or inportot.-foranyp,_w111oo.1111opr1or- 1--~~~~~~,......,---1 perm~~dHRB. CHIEFDESIGNERICHONHleM THI~ ~ : ..."'. ..""""•._ ph6pd . .... . ,.,, ""'hlm ' "'"·~........ P. Arnaud .,..oo,m•""""•"-••<Diot...,..,..,,..HRB. SCALE: 1120 ti' LS:1/2D NOTES:~------------------~ GHI CHU: 1. ALL DIMENSIONS ARE IN MILLIMETERS. 1. TAT cAcAc K[CH THllO'c THEOElONVI MM. 2. CONCRETE GRADE FOR DECK: F'C=45 MPA (CYLINDRICAL) 2. ~ e£; TONG EJ(SI Veil e.(N MAT cA.ul'o=4I; l,1pe CMAU TRl,I) 3. FOR GENERAL SEGMENt ARRANGEMEfff REFER TO DWG. NO. 3. El~ XEM BO TRI PH.'.N ElOAN CHUNG XIN XEM BAN VE SO PIC-TEC-GAD-WVO-J00-18007-B TO PIC-TEC-GAD-WVO-J00-16009-B PRO.ECTI DI/AN : HANOI PILOTUGKT METROLINE Sadlon Nhon- Hrml RalwaySlllllan ru~N WONG sAT00 THI THIDlt:MTPHANOi Eo911 Nh&i-Ge H~ NOi TITlflrtNBANv£: NHUE RIVER CROSSING WQ'T SONG NHUI;: DECK - SEGMENT PS2 - CONC OUT - 2 / 2 BAN M,!..T cAU - PHAN OO~N PS2 - m cAU B~ TONG - 2 / 2 ORA'MNGNO.BAN~ so: IPIC-TEC-GDO-WVO-J04-18315-B 2A
  • 44.
    B 1447 • -0 ~ __-"'--""'"'--...______________.,1" - ·~~ 4'1• seo4~ ~ • , • • • , , ~~~__.~~~~~~---+-~~~~~~~~-'-~~---'------~----~·....;....------~· ~· ....;....___.. -~ 1000 I 1289 525 I HALF SECTION A-A NO'A MAT CAT A-A SCALE: 1/20 ITLfi':1/20 5065 2271 B ~ -----------------------------------------------------------------------! I I I DECKAXIS r TIM K8' cAu NHIP ~.____________._________________._______...__________.__________________, I 1000 I 1289 I 532 I 880 VIEWC-C GQC NHiN C-C SCALE: 1/20 TYLS:1/20 I 1364 I I SA5 SB5 ~ SAS SB6 t11 I I I I I I II1'°1I SA7 SB7 ------.._ I I I 1,15 II I I I I I I II !ifbl I I I I I I tffd I I ' ' : ~: I ' ' ' ' ' ' ' SA6 SB6 KEYPLAN MAT BANG CH[NH SCALE : 1/500 ri' LIS: 11500 l--41·=nl-~-·-'-4--··_.......----"·--·-·.__.......___._.__._~___:~4--~__._._~_. __._·_,_:~~ I I I 3000 SECTION B-B MAT CAT B-B SCALE: 1/20 IT Lfi':1/20 546 I I I I 1463 I ~--~----~------~-------------------11 .' .A A ' . A A ........ , I I - BOTTOM BLISTER TYPE 2 IBOTI'OM BLISTER TYPE 2 SEE DWG. NO. - PIC-TEC-G~WVChJ00-18330-B XEM BAN ve so-Pie.TECGCJO. I .Joo.1e330-8 j'-oECK AXIS I TIM K!:TcAu NHIP I,-•, I ~._· __4 ___.___. . . _ l_ _ _ __ . __ _ _ _ _ _ _ _ _ _ _ _ _ _ _ _ _ _i ~ I 548 I 1447 HALF SECTION D-D NO'A MAT CAT D-D SCALE: 1/20 ri'LIS:1/20 I Ht- ~j I _;1ilt_ t I J!¥,LJll__ DETAIL -1 CHI TIET-1 SCALE: 1/5 ri' LIS:1/5 NOTES:~~~~~~~~~~~~~~~~~~~~ GHI CHU: 1. ALL DIMENSIONS ARE IN MILLIMETERS. 1. TAT cAcAc K[CH THllO'c THEOElON VI MM. 2. CONCRETE GRADE FOR DECK: F'C=45 MPA (CYLINDRICAL) 2. ~ ee TONG EJ(SI Veil e.(N MAT cAUl'o=4I; lApe CMAUTRl,I) 3. FOR GENERAL SEGMENt ARRANGEMEfff REFER TO DWG. NO. 3. ElEXEM BO TRI PHAN ElOAN CHUNG XIN XEM BANVE SO PIC-TEC-GAD-WVO-J00-18007-B TO PIC-TEC-GAD-WVChJ00-16009-B ~ 1 o-----+-----+--------------------------_._______.___________. CLIENT: II PROJECT IMPLEMENTATION CONSULTANT STATUS lT1NH T~ : PRO.ECTlDI/ AN : HANOI PILOTUGKT METROLINE Sadlon Nhon- Hrml RalwaySlllllan ~ ! CHO~•" n ~ TV V.'..' THVC Hl~N DIJ ,., Technical Deeign .. ~ l!i 1-----+-----+----------------------------'"------i-------i.-------1 """' •v • , "" ~ "" • 1 c.TEC<lll().Wllt>.KJ4.'"'""-'"'""" - ru~N Ell/ONG s.J.TaoTHI THI01t:MTP HANOi Eoflll Nhfin. Ge H~ NOi ~~ SftTRASA t ~ ~ HRB DESIGNEDBY Tll1£r~ : FORIMTl~eANv£ : DATEINGAY: TITlfrtNBANv£: NHUE RIVER CROSSING ALENMIE rtN BANv£: 7 i!~ 2A 3MJ.11'11 2nd•ubm1111onotlllchn1ca1d-.,, A.K 6. Maurte 1>.Amaud A.K A1 31/01110 WQ'TSONGNHUI;: ~ !ti ~~ ::~ ~::.~ ~~ :::~: :::::: HANOI METROPOLITANRAILTRANSPORTPROJECTBOARD Cl£Cl<EDBYsoAT : "'~•-o-.i"""""""_""_,,_,.,._ __, DECK-SEGMENTSSA6-SB6-CONCOUT ~ ~ ~ 1-- 1 -A--+s-u-11-110--+-F-im--.-------------------------1--A.-K_____._6_.. Ma-u-rie---i.P-.Amaud-----l BAN Dl/ANflUONGsATflOlHI HAN(ll 1----G_._M_a_un_·s----------1 =.::~~.,..-ror.,,,.p._w111oo.1111opt1or- BAN M,!..T cAU - PHAN flO~N SA6-SB6 - K~TcAU B~ TONG ...._~ ; ~ REVISION DATE DESCRIPTION DelllNEDl!Y IHlllEIJl!Y CllJEFOFDBD PROJECT01RECTOR1G1Ar.1rocD11AN: CH1EFoES1GNER1CHONH1eMTH1£r~: ..,"'""'""'"""-""'pd•"'•"""'""'"'"'"""'~...,.., DRA'MNGNO.lBANv£SO : I~._~_~__w_~_D01_.__N_~_Y_.___________~_1_~_NG_s_~_~_1__________.~™'-~E----~D--r ___._00_1_11i11_11ET__E.._______________________________._A_la_in__B~_ch__e~_a_u_____________________.____P_._Am__a_ud_________.__.....__~_. m_•""""__•_"-__••_o1no__'_...,__,.,_..,__,.._"_RB.______-'---------~P~l~C~-~T~E~C~-~G~D::....::0~-~'li/V.:....:.~0~-J.=..::0~4--1~8~3~1~6~-~B:..._.i.....:2~A~
  • 45.
    v- J_~ SLOPE1% f)(ld6c1% ~-~~ 0 ( ~ '21 .1_--,j -.- .q '<T 8 ~u j ~ .. J;ir ~ <l: _ <l<' -4 ~ <1 ~+----+~~,~,,_~=_:""_-_-_-_-_-_-_-_----+~----------~~-----~~-~;.,---'=-~ -:- DETAIL1 ~ CHI Tlt:"f 1 ..Q/ (D~/ 4 - .:J__ 4 v ,• '4 ' 548 1463 .~~----1 ~ B -;~~ -L - <I --1.--.....~c.i...------____. - ~ -~I j.500 .4 .! 4 4 <I.A._•""' s-4 ~ v • ~ ~-~___.--------+---------+--~-------------------+-~ 1000 I 1289 493 I HALF SECTION A-A NO'A MAT CATA-A SCALE: 1/20 ti' LS:1/2D 5085 2303 -..-------------------------------------------+I I I DECKAXIS r TIM 1<£T cAU NHJP ~~----------------~--------~----------+ I 1000 I 1289 I 532 I VIEWC-C G6C NHlN C-C SCALE: 1/20 TI' Lf;::1/20 880 I 1384 I SA6 SBB I ,,,------- t ' I I I I I I I I I lilfui' SA7 SB7 SAS SB8 -------.... I ~ 11 1 1 11 11 1~I 1 ~~~~1JNI I1IIIf [I 1I1 MAT BANG CH[NH SCALE : 1/500 ti' LS: 1/500 L!--......~·~·_._.__.·_-_.__-_-·___,f__• _ ·_ 4_·_._4_·_·_.__!_LJI "I "I I I ~ ~ I I 3000 SECTION B-B MAT CAT B-B •SCALE : 1/20 Ti'LS:1/2D 548 I I 1485 I ~~.-----------.---.......----------11 . ·. '' . I I I I I I I I I I I I I I I I I I I I I I - BOTTOM BLISTER TYPE 1 I BOTIUM BLISTERTYPE I SEE DWG. NO. - PIC-TEC-GiDO-WVO-J00-18330.S XEM BAN V£ SO- PIC-TEC-GOO: 00-18331H3 I I j Hi-~ !!Lllt ' I ~j_jj_ DETAIL-1 CHI Tl~T-1 SCALE: 115 ti' LS:l/5 I I I ~ DECKAXIS I TIM K£T cAU NHIP <I ~· - I I I ..-- - ........._, ~,_____...__..._l_____._____________________---11 ~ 1,___54_8~~1~~~-1~~3~~~~1 HALF SECTION D-D NliA MAT CAT D-D SCALE : 1/20 ti' LS:1/2D NOTES:-------------------~ GHI CHU: 1. ALL DIMENSIONS ARE IN MILLIMETERS. 1. TAT cAcAc K[CH THllO'c THEOElON VI MM. 2. CONCRETE GRADE FOR DECK: F'C=45 MPA (CYLINDRICAL) 2. ~ e£; TONGEl(SI Veil B.(N MAT cAUl'c=4S l,1pe CMAUTRl,I) 3. FOR GENERAL SEGMENt ARRANGEMEfff REFER TO DWG. NO. 3. El~ XEM BO TRI PH.'.N ElOAN CHUNG XIN XEM BAN VE SO PIC-TEC-GAD-WVO-J00-18007-B TO PIC-TEC-GAD-WVO-J00-18009-B ~ ------+--------------+---------- CLIENT: II PROJECT IMPLEMENTATION CONSULTANT STATUST1NHT~: PRO.ECTl DllAN : HANOI PILOTUGKT METROLINE Sadlon Nhon-Hrml RalwaySlllllan ~.." ! 1 - - - + - - - - + - - - - - - - - - - - - - - - - - 1 - - - - + - - - - - I CHO EIAU nr: • TV VJN THVCHleN DIJ AN PIC-TEC<lllO-Wlt>.KJ4-1D17-8_:rADWe - Technicel Deeign ru~NEll/ONG sATOO THI THIDlt:MTP HANOi Eoflll Nhfin-Ge H~NOi •• SYSTRA S.A :.: n HRB oes1GNEDBY1rn1£r~ : FORJMn~BANv£ : DATEI NGAY: 1ru1n::NBANv£: NHUE RIVER cRoss1NG ALENMIETtNBANv£: i ~i 2A 3MJ.11'11 2nd•ubml11lonoflllchnlcald-.,, A.K G. Maurte P. Amaud A.K A1 31/01/10 WQ'TSONGNHUI;: g ! ti i--1=c --+2M1="-'11t1"'"0'-+""'u=oc1a·111c1=------------+A."'K"'----FG."'Ma=u=rte-+P""'. Amaud==--i HANOI METROPOLITAN RAIL TRANSPORT PROJECT BOARD Cl£Cl<EDBYsoAT : "'~"-'II"""""'"_""_,,_,.,._ __, DECK-SEGMENTS SA7-SB7 - CONC OUT ~ ~ ~ ~= ::~ ~::= ~~ :::~: :::: BANDl,l'ANflUONGsATDOlHIHAN(ll 1---G_._M_a_un_·s.,....---....,......,....-1 =.::~~.,..-ror.,,,.p._-...111opt1or- BANM,!..TcAU - PHAN tlO~NSA7-SB7 - K~TcAU B~ TONG hl ~ ',!! PROJECT DIRECTOR1GIAMroe DJAN : CHIEFDESIGNER1CHOlfileM TH1£r ~ : ..,"'. ..""'"• ._""'Pd•..,••,.,,""'"'"''"'"·~....,.., DRA'MNGNO.1BANv£ so : I~ ~ i ~~ ~ NO?~:~~:O, ~r :ml!!" =~~.: AlainB'9chereau P. Amaud """ 00·m•""'"•"-••o!not..,.,.,..,,.."RB. PIC-TEC-GDO-WVO-J04-18317-B 2A~....__...___.___..______________.....___...___....___.._________________.________________.__________.________________.___________________......___,
  • 46.
    DETAIL 1 CHIT1£T1 SLOPE 1% ElOd6C1% B 5085 SYMMETRY t--_5_3_2____88_0____,______1_3_84___----<l'll X(ING -----$ '. ·, . ._ 548 I /I ' ~ <: 55 -~ ... " _ ~ <f A -I~ ' . ' I 1485 · ~ ; L - ~-~---t--------+---------+---~0~_._:1_._soo_"_-~.·1__~_·_-_'_..,_·_· _·__·...,.· ~~ 1000 I 1289 410 I I HALF SECTION A-A NO'A MAT CAT A-A SCALE: 1/20 TYLS:1/20 5085 2325 B -.-----------.----------.-------,--------.------------1I I I DECKAXIS r--TIM 1<£T cAu NHIP _.________.__________._____._______.___________, I 1000 I 1289 I 532 I VIEWC-C GOC NHlN C-C SCALE: 1120 TYLS:1/20 880 I 1384 I t''' '' '''' 'I~' IIliP15 I I I I ['<4 I I @ l I I I I , , ' -=-: , §e& SB8 I SA7 SB7 ~ SA8 SB8 SA9 SB9 ---... tt::YPLAN MAT BANG CH[NH I SCALE : 1/500 TY LI;:: 1/500 I ~ ·~" . · 4• • , .. , • • • ~ : " ~ Ji'-----~. ~<>l------1-~.......~~~.......~~~~.......~~~~~~---t-~ ~ i I I -tr~ I /Lllt t I I I 3000 I ~_ij__ DETAIL -1 CHI TIET-1 SCALE: 1/5 TYLl;:1/5 (~ n1 548 I SECTION B-B MAT CAT B-80 SCALE : 1/20 TY LS:1/20 1499 I ~--------r------..---------------1 I " ' .' ......., I I - BOTIOM BLISTER TYPE 1 I BOTTOM BLISTERTYPE 1 SEE DWG. NO. - PIC-TEC-G,DO:WVO-J00-18330-8 XEM BANv£ s0- PIC-TEC-000: 00-1833().a I'--DECK AXIS I TIM KtfcAu NHIP ~ I I i ~ I 548 I 1485 HALF SECTION D-D NO'A MAT CAT D-D SCALE: 1/20 TYLl;:1/20 I NOTES:-------------------~ GHI CHU: 1. ALL DIMENSIONS ARE IN MILLIMETERS. 1. TAT cAcAc K[CH THllO'c THEO ElON VI MM. 2. CONCRETE GRADE FOR DECK: F'C=45 MPA (CYLINDRICAL) 2. ~ ee TONG El(SI Veil e.(N MAT cA.ul'o=4I; lApe CMAU TRl,I) 3. FOR GENERAL SEGMENt ARRANGEMEfff REFER TO DWG. NO. 3. El£XEM BO TRI PHAN ElOAN CHUNG XIN XEM BAN VE SO PIC-TEC-GAD-WVO-J00-18007-B TO PIC-TEC-GAD-WVO-JIJ0.18009-B ~ o----+----+--------------+---------- CLIENT: II PROJECT IMPLEMENTATION CONSULTANT STATUST1NHT~: PRO.ECTl Dll AN : HANOI PILOTUGKT METROLINE Sadlon Nhon -Hrml RalwaySlllllan :i:.." ! 1 - - - + - - - - + - - - - - - - - - - - - - - - - - 1 - - - - - + - - - - I CHO EIAU nr: • TV VJN THVC Hl~NDIJ AN PIC-TEC<lllO-Wllt>.KJ4.1D1H_:rADWe - Technicel Deeign ru~NEll/ONG sAT00 THITHIDlt:MTPHANOi Eoflll Nhfin. Ge H~NOi •• SYSTRA S.A :.: n HRB oes1GNEDBY1rn1£r~ : FORJMn~BANv£: DATEINGAY: 1ru1n::NBANv£: NHUE RIVER cRoss1NG ALENMIETtN BANv£: i ~i 2A 3MJ.11'11 2nd•ubml11lonoflllchnlcald-.,, A.K G. Maurte P. Amaud A.K A1 31/01/10 WQ'TSONGNHUI;: g ! ti ......_1"'"c --+2M1="-'11t1"'"0'--+""u=oc1a·111c1=------------+A."'K"'----FG."'Ma=u=rte-+P""'. Amaud==--i HANOI METROPOLITAN RAIL TRANSPORT PROJECT BOARD Cl£Cl<EDBYsoAT: n.~•-'11"""""""_""_,,_,.,._ __, DECK-SEGMENTS SA8-SB8 - CONC OUT ~ ~ ~ ~= ::~ ~::= ~~ :::~: :::: BANDl,l'ANflUONGsATDOTHIHAN(ll ......__G_._M_a_un_·8 .,....-....,......,....-1 =.::~~.,..-ror.,,,.p._-...111opt1or- BANM,!..TcAU - PHAN tlO~NSA8-SB8 - K~TcAU B~ TONG hl ~ ",!! PROJECTDIRECTOR1GIANroe DI/AN : CHIEF DESIGNER1CHONH1eM TH1£r ~ : ..,"'. ..""""• ._""'Pd•..,••,.,,""'"'"''"'"·~....,.., ORA'MNGNO.lBANv£ so : I~ ~ i ~~ ~ NQ?~:~~:01 ~r :ml!f =~~llll Alain B'9chereau P.Amaud """ 00·m•""""•"-••olnot..,.,.,..,,..."RB. PIC-TEC-GDO-WVO-J04-18318-B 2A~..__...___.___..._______________.....___...___..___.._________________.________________.__________._______________.._____________________.____,
  • 47.
    B ;.,_~ L '.....,_I_.cJ..~---------_; - ~<l . ·l . f?PO . l<f .. ., 4 <l "~ ~ ~ ~~~+-~~~~~--+~~~~~~~~-+-~~--~';____.,~,;__-~A.___~_;_~---......._j-~ 1000 I 1289 452 I HALF SECTION A-A NO'A MAT CAT A-A SCALE: 1/20 Ti'Ll;.:1/20 5085 2343 B ~ ~-------------------~-----------------! I I I r-DECKAXIS r TIM K£T cAu NHIP ~...._______.________....__ _ _....______.________--+ I 1000 I 1289 I 532 I VIEWC-C GOC NHlN C-C SCALE: 1/20 Ti' Li1::112D 880 I 1384 I .......I1Jw=·.·~~~~~ ..I IIr,......MAT BANG CHiNH SA8 SBB ,,,------- SA9 SB9 I ~ ~: : . . . " . " A • 4 4 ~ • ' ~ I 1§1 ~~ I 11 -· J.....l-1~ -----!-----------+-~~~ I I ../~: .4 • ' 3000 SECTION B-B MAT CAT B-B I 0 SCALE : 1120 Ti' Ll;:112D 548 I 1503 I ~ ~-. ~-~--~--------------11 " . '.A I I I '· . ~DECKAXIS I TIM K£T cAu NHIP ·. ~ I ~~....,.,-' =-...___._..,,.,,::--_.___________I ~ 548 1499 : HALF SECTION D-D NO'A MAT CAT D-D SCALE : 1120 rt Ll~:1/20 SCALE : 11500 Ti' LI;: 1/50D I I j Hi- ~I !;_ill_ I I ~_ijj_ DETAIL-1 CHI Tli;T-1 SCALE: 1/5 Ti'Li;:115 NOTES:~~~~~~~~~~~~~~~~~~~~ GHI CHU: 1. ALL DIMENSIONS ARE IN MILLIMETERS. 1. TAT cAcAc K[CH THllO'c THEOElONVI MM. 2. CONCRETE GRADE FOR DECK: F'C=45 MPA (CYLINDRICAL) 2. ~ ee: TONGEl(SI Veil e.(N MAT cAUl'o=4S l,1pe CMAUTRl,I) 3. FOR GENERAL SEGMENt ARRANGEMEfff REFER TO DWG. NO. 3. Ele:XEM BO TRI PHAN ElOAN CHUNG XIN XEM BANVE SO PIC-TEC-GAD-WVO-J00-18007-B TO PIC-TEC-GAD-WVO-J00-1800S-B ~ 1 t----+----+-------------_.____..._______. CLIENT: II PROJECTIMPLEMENTATIONOONSULTANT STATUSlT1NHT~: PRO.ECTl Dl/AN : HANOIPILOTUGKTMETROLINE SedlonNhon-HrmlRalwaySlllllan ~ ! CHO~•" n ~ TV V.'..' THVC Hl~N DIJ ,., Technical Deeign .. ~ l!; 1 - - - - + - - - - + - - - - - - - - - - - - - - - ' " - - - - - - - - i . - - - - - 1 """' 'Vo • "" ~ "" PIC.TEC<llX).Wllt>.KJ4.lal1H_:rADWe - ru~N Ell/ONG sATOO THI THIDlt:MTP HANOi Eoflll Nhfin. Ge H~ NOi ~~ SftTRASA t ~ ~ HRB DESIGNEDBY Tll1£r~ : FORIMTl~eANv£: DATEINGAY: TITlfrtNBAN~ : NHUE RIVER CROSSING ALENMIErtN BAN~: 7 i!~ 2A 3MJ.11'11 2nd•ubm1111onotlllchn1ca1d-.,, A.K 6 . Mauite 1>. Amaud A.K A1 31/01/10 WQ'TSONGNHUI;: ~ !ti ~~ ::~ ~::.~ ~~ :::~: :::::: HANOIMETROPOLITANRAILTRANSPORTPROJECTBOARD Cl£Cl<EDBYsoAT: "'~"-'II"""""'"_""_,,_,.,._ __, DECK-SEGMENTSSA9-SB9-CONCOUT ~ ~ ~ 1--1-A--+s-u-11-110--+-F-im--.------------.j..A.-K_ __._6_.. Ma-u-rie---i.P-.Amaud---l BANDl/ANflUONGsATDOlHIHAN(ll ..__G_._M_a_un_·s------1 =.::~~.,..-ror.,,,.p._w111oo.1111opt1or- BANM,!..TcAU - PHAN tlO~NSA9-SB9 - K~TcAU B~ TONG ...._~ ; ~ REVISION DATE DESCRIPTION DelllNEDl!Y IHlllEIJl!Y CllJEFOFDBD PROJECT01RECTOR1G1Ar.1rocD11AN: CH1EFoES1GNER1CHONH1eMTH1~~: ..,,.. ..""'"•"-""'pd•"'•"""'""'"'"'"""'~...,.., DRA'MNGNO.BAN~so: I~..._~_~__w_~_D01_.__N_~_Y_.______~_1_~_NG_s_~_~_1_ _ _ ___.~™1_~E--~D-r _ _._00_1_11i11_11ET_E.._________________._A_la_in_B~_ch_e~_a_u___________.___P_._Am_a_ud_____.__....._~_. m_•""""_•_"-_••_o1no_'_...,_,.,_..,_,..._"_RB.___..1-_ _ _ _~P~l~C~-~T~E~C~-~G~D::..::0~-~'li/V.:..:.~0~-J.=..::0~4--1~8~3~1~9~-~B:.._.i....:2~A~
  • 48.
    ~ ::i: 'gi l!; .. nt~ ~7 i ~ ! ! ti ~~~ ~ ',!! ~ n11. 4 . .. ..'• .,j .' "". ' ... ' " . ' .. ,. 4· . .'. . 4 .• . ' .. ~' . .'. I -~I I I I I I I I I I I I I ~ I ~ I I I I I I I I I I I I I L..-. SECTION A-A M~1A&~1A-A TYL1;':1/20 548 L.. _ _J ~726 DO reN ---;n 548 SECTION C-C MAT CAT C-C • SCALE: 1120 Ti'LS:1/20 I~ Iv I I l I I I I ~DECKAXIS I TIM K£T cAu NHIP I i I CLIENT: IIt---+---+---------------+-----1----1-------l CHOEIAUnr: , 2A 3MJ.1111 2nd .subml111lon ofl&dinlcaldea9'1 t---+---+---------------+-----1----1-------l HRB 1C 2Mllltl0 u 1lld 18 ZW&"IO UPDATED A.K . Arnaud t-;;.;;..--t=~;.:.._+--""'====--------------4"A.::..:K::..__-f=::..::::::::...+.~Amaud=~ HANOI METROPOLITAN RAIL TRANSPORT PROJECT BOARD KEYPLAN MAT BANG CHiNH • SCALE: 11250 TYL!;': 1/250 ... ,. 2784 . ' ' ' "· . - --~-- ' '- "' I / I I I I I I '-----"'-'-----=---s=E~C=-:T~~O~N:----B~~''---:-B~'~"~'":::·'~&J/_g~~~~~ M~T CAT B-B I I I / / / / / / / / PROJECT IMPLEMENTATION CONSULTANT TV VJN THVC HISN DIJ AN SYSTRAS.A SCALE: 1120 T'l'LS:1/20 ' ' ' ' ' 4 4 / , , / DETAIL 1 CHI Tl~T 1 SCALE: 1/20 TYLS:1/2D ALENMIEITtN BAN'IE: DESIGNED BYTll1£r~ : A. K / / ' ''' I I I I I I I I I I I / / I / / FORIMTI~BAN v£ : A1 STATUSlT1NHT~: Technical Deeign DATEINGAY: 31/01110 Cl£Cl<EDBYsoAT: n.~•-.-.i"""""'"_""_,,_,.,._ __,G. Mauris ~whol1or inportot.-foranyp,_w111oo.1111opr1or- 1A 3UJ1110 Fim-. A. K .Arnaud BAN DI/ANDUONG BAT DO lHIHAN(ll DelllNEDl!Y IHlllEIJl!Y CllJEFOFDBD PROJECT DIRECTORIGIANElOcDI/AN : 1-------,--...,.....,...-1 perm~~dHRB. CHIEFDESIGNERI CHONHleM THI~ ~ : ..."'. ..""'"• ._ ph6pd . .... . ,.,, '""hlm ' "'"·~........ REVISION DATE DESCRIPTION SC/ADO! NGA.Y NQI DUNG SO'A DOI 1111tr1E 1111.r C1!lNllillnETIE Alain B'9chereau P. Arnaud """bO,m•""'"•"-••<Dlot...,..,..,,..HRB. NOTES: ~~~~~~~~~~~~~~~~~­ GHICHU: 1. ALL DIMENSIONS ARE IN MILLIMETERS. 1. TAT cA cAc KICH THl!Qc THEO DO'N Ill MM. 2. CONCRETE GRADE FOR DECK: F'C=45 MPA {CYLINDRICAL) 2. c.':P BS TONG DOI VOi BAN ~T cAU l'o=45 MP9- (MAIJ TRl,J PRO.ECTI DI/ AN : HANOI PILOTUGKT METROLINE Sadlon Nhon- Hrml RalwaySlllllan nJ~N WONG sAT00 THI THIDlt:MTPHANOi Eo911 Nh&i. Ge H~ NOi TITlfl~NBANv£ : NHUE RIVER CROSSING WQ'T SONG NHUI;: DECK - BLISTER TYPE 1-2-3-0-6 - CONC OUT BAN M.!<T cAU - BLISTER TYPE 1-2-3-5-6 - ~T cAU B~ TONG DRA'MNGNO.BANv£ SO : PIC-TEC-GDO-WVO-J04-18330-B 2A
  • 49.
    ~ ~ 'l!; .. nt ~~7 i ~ ! ! ti ~~~ ~ ',!! ~ n11. 2A 30oGl/11 2nd .subml111lon ofl&dinlcaldea9'1 SM' 7-- SA4 .., j:: 988 SECTION A-A MAT CATA-A 548 728 • SCALE : 1/20 I I Ti' Ll;:1/20 . ~ ·-'---'---'--. ---: ~. I '. 548 SECTION C-C MATCATC-C SCALE: 1/20 Ti' Lf;::1/20 CLIENT: IICHOEIAlmr: • HRB KEYPLAN MAT BANG cHrNH SCALE: 11250 Ti'LI;: 1/250 ~ " ~ 402 ~ lrDECKAXIS r TIM K£T cAu NHIF' PROJECT IMPLEMENTATION CONSULTANT TV VJN THVC HleN DIJ AN SYSTRAS.A .'. I I I 1C 2Mllltl0 u 1lld 18 ZW&"IO UPDATED A.K . Arnaud t-.:.;;.--t=~'-'=-+=~~-------------4"A.::..:K.:...__-4==~-".Amaud==-~ HANOI METROPOLITAN RAIL TRANSPORT PROJECT BOARD 1A 3UJ1110 Fim-. REVISION DATE DESCRIPTION SC/ADO! NGA.Y NQI DUNG SO'A DOI A. K .Arnaud BAN DI/ANDUONG BAT DO lHIHAN(ll DelllNEDl!Y IHlllEIJl!Y CllJEFOFDBD 1111tr1E 1111.r C1!lNllillnETIE PROJECT DIRECTORIGIAMElOcD./AN : Alain B'9chereau / / SB4 SB4' 4 6 ". 600 I • I . ' / "·. / ', '>, .d . <l· ----~ / ' _DETAIL 1 SECTION B-B CHITltf 1 MAT CAT B-B SCALE: 1/20 / / / / / / TYLI0.:1/20 DETAIL 1 CHI Tli;:T 1 SCALE : 1/20 Ti'Lf;::1/20 ALENMIEITtN BAN'IE: ' ' ' ' ' / / / / / / / ' / I / / I I I I I I t I I I I STATUSlT1NHT~: Technical Deeign DESIGNED BYTll1£r~ : FORIMTI~BAN v£ : DATEINGAY: 31/01110A. K Cl£Cl<ED BYsoAT: G. Mauris CHIEFDESIGNERI CHONHleM TH1£r ~ : P. Amaud A1 ThLldlawl1111rru11tncti......-mi..t,~i:r~~ ii whole or in part orUlldfor anr p.,.,._wthcU lh9pricrwrillln permiHionofHRS. a.."'1nty khnng 0uqc ph6p•Cr dl.'la di.IOI mQIhlrtl tii:rc,.mOtsNr1i.r - IJO,mO"'°"O "-••.en.t ....m ...ca'lo HRB. NOTES: -----------------~ GHICHU: 1. ALL DIMENSIONS ARE IN MILLIMETERS. 1. TAT Cl Clc KICHTHl!Qc THEO DO'N Ill MM. 2. CONCRETE GRADE FOR DECK: F'C=45 MPA {CYLINDRICAL) 2. c.':P ai; TONG DOI VOi BAN ~T GAU l'o=45 MPll (MAu TRl,J PRO.ECTI DI/ AN : HANOI PILOTUGKT METROLINE Sadlon Nhon- Hrml RalwaySlllllan nJ~N WONG sAT00 THI THIDlt:MTP HANOi Eo911 Nh&i-Ge H~ NOi TITlflrtNBAN~ : NHUE RIVER CROSSING WQ'T SONG NHUI;: DECK - BLISTER TYPE 4 - CONC OUT BAN M.!<T cAU - BLISTER TYPE 4 - ~T cAU B~ TONG DRA'MNGNO.BANv£ SO : PIC-TEC-GDO-WVO-J04-18332-B 2A
  • 50.
    ~ ~ ; 'l!; .. nt ~~7 i ~ ! ! ti ~~~ ~ ',!! ~ n0.. 15 ~SAB' tt-1 I I I I I I WA<A l I I l I I I I I ~ '~ rr Hi KEYPLAN MAT BANG cHrNH SCALE: 11250 TI'LI;: 1/250 ~1r---~~~~~~~~~~~~~----ji I I I I I . I ~ rn I tt~ 4 - 4 I I 1 ~DECKAXIS v-f----------------------<vrTIM K£T cAU NHIF' t----+----+-------------_.____..._______. CLIENT: 1----+----+---------------'"---1------i.-----1 CHOEIAUnr: 2A 3MJ.1111 2nd .subml111lon ofl&dinlcaldea9'1 A. K 6 . Maurte ... Arnaud 1C 2Mllltl0 Uodatlld A. K 6 . Maurte ... Arnaud 1725 I I~ I~~I 548 _1___10_99____,_I-4'--00-----'I .. <l ' .. •. ' . ' «' , . . :__4' " SECTION A-A MAT CAT A-A SCALE: 1120 TI'Li;:1/20 1864 I I l!r ~~ 400 - -t------2 ·-1--4------- ---·---·-~!-·-1- .r,. ..... <I <J .d. ~ • ~ . .I, .<l .,. .J ' .. HRB 1864 I 400 VIEW C-C [ 1 - GOC NHlN C-C SCALE: 1120 TI' Ll;:1120 II PROJECT IMPLEMENTATION CONSULTANT TV VJN THVC Hl~N DIJ AN SYSTRAS.A 18 ZW&'"IO UPDATED A. K a . Maurie ...Arnaud HANOIMETROPOLITAN RAILTRANSPORT PROJECT BOARD 1A 3UJ1110 Fim-. REVISION OATE DESCRIPTION SC/ADO! NGA.Y NQI DUNG SO'A DOI A. K a . Maurie P.Amaud BAN DI/ANDUONG BAT DO lHIHAN(ll DelllNEDl!Y IHlllEIJl!Y CllJEFOFDBD PROJECT DIRECTORIGIANElOcD./AN : 1111tr1E 1111.r C1!lNllillnETIE Alain B'9chereau . 4 ·' . ' ' ' ALENMIEITtN BAN'IE: DESIGNED BYTll1£r~ : A. K I 700 I sTI - I 0 ,l I ....I . J4 .. <l . ' . .,· 4 VIEW B-B GOC NHlN B-B SCALE: 1/20 TILl;:1120 FORIMTI~BAN v£ : A1 • . . .. STATUST1NH T~: Technical Deeign DATEINGAY: 31/01110 Cl£Cl<EDBYsoAT : n.~•-.-.i"""""""_""_,,_,.,._ __,G. Mauris ~whol1or in por1..-.-roranyp,_w111oo.1111opr1or- 1------------1 perm~~dHRB. CHIEFDESIGNERICHOlfileM THI~ ~ : ..."'. ..""""•._....pd . .....,.,, '""hlm ' "'"· ~........ P.Arnaud """bO,m•""""•"-••.enot...,..,..,,..HRB. I ~SBB' I WffA I I ..JL... p::: _[_ ~ NOTES: ~~~~~~~~~~~~~~~~~ GHICHU: 1. ALL DIMENSIONS ARE IN MILLIMETERS. 1. TAT cA. cA.c KICHTHl!Qc THEO DO'N Ill MM. 2. CONCRETE GRADE FOR DECK: F'C=45 MPA {CYLINDRICAL) 2. c.':P ai; TONG DOI VOi BAN ~T cAU 1'1:>=45 MP9- (MAIJ TRl,ll PRO.ECTI DI/ AN : HANOI PILOTUGKT METROLINE Sadlon Nhon- Hrml RalwaySlllllan ru~N WONG sAT00 THI THIDlt:MTP HANOi Eo911 Nh&i-Ge H~ NOi TITlflrtNBANvE: NHUE RIVER CROSSING WQ'T SONG NHUI;: DECK - DEVIATOR TYPE 1 - CONC OUT BAN M.!<T cAU - LO~I BO CHUY~N HU'O'NG 1 - K~T cAU B~ T( NG ORA'MNGNO.BANvE so: IPIC-TEC-GDO-WVO-J04-18350-B 2A
  • 51.
    ~ ; 'l!; .. nt ~~7 i ~ ! ! ti ~~~ ~ ~ ',!! 0.. n I -813 I I .J 1536 SECTION A-A MAT CAT A-A • SCALE: 1120 'r1' LS:1/20 2701 1861 2674 KEYPLAN MAT BANG CHiNH • SCALE: 11250 Ti'LS: 1/250 v-DECKAXIS I TIM K£T cAu NHIP roECKAXIS ·---·---·-------rfM~Hl_P__ . L - - . . J . . . . - - L - - - - - - - - - - - - - - - - 4 - - - - - - - - - l f - - - - - I CLIENT: L--..J---L---------------+----1------li------I CHOEIAUnr: 2A 3MJ.1111 2nd .subml111lon ofl&dinlcaldea9'1 A. K VIEWC-C GOC NHiN C-C SCALE: 1/20 Ti'LS:11211 HRB 1C 2Mllltl0 u 1lld 18 ZW&"IO UPDATED A. K L-~~~~~=~------------.+::A.::..:K'----F::..:::::::.:...+.:..:..:.:=-~ HANOI METROPOLITAN RAIL TRANSPORT PROJECT BOARD 1A 3UJ1110 Fim-. REVISION OATE SC/ADO! NGA.Y DESCRIPTION NQI CUNG SO'A DOI A. K BAN DI/ANDUONG BAT DO lHIHAN(ll DelllNEDl!Y 1111trK£ IH!llEDl!Y 1111.r II PROJECT IMPLEMENTATION CONSULTANT TV VJN THVC Hl~N DIJ AN SYSTRAS.A PROJECT DIRECTORIGIANElOcD./AN : Alain B'9chereau 4 3000 VIEW 8-8 GOC NHlN 8-B SCALE: 1/20 Ti'Ll;:1/2D ALENMIEITtN BAN'IE: ~ ". ·, ' . DESIGNED BYTll1£r~ : FORIMTI~BAN v£ : A. K A1 STATUSlT1NHT~: Technical Deeign DATEI NGAY: 31/01110 NOTES: ~~~~~~~~~~~~~~~~~---, GHICHU: 1. ALL DIMENSIONS ARE IN MILLIMETERS. 1. TAT cA. cA.c KICH THl!Qc THEO DO'N Ill MM. 2. CONCRETE GRADE FOR DECK: F'C=45 MPA {CYLINDRICAL) 2. c.':P BS TONG DO"I VOi BAN ~T cAU 1'1:>=45 Mi- (MAIJ TRl,J PRO.ECTI DI/AN : HANOI PILOTUGKT METROLINE Sadlon Nhon- Hrml RalwaySlllllan ru~N WONG sAT00 THI THIDlt:MTP HANOi Eo911 Nh&i-Ge H~ NOi TITlfll'tNBANv£: NHUE RIVER CROSSING WQ'T SONG NHUI;: DECK - BLISTER TYPE 7 - CONC OUT BAN M.!<T cAU - BLISTER TYPE 7 - ~T cAU B~ TONG ORA'MNGNO.BAN'IE SO : PIC-TEC-GDO-WVO-J04-18355-B 2A
  • 52.
    411------+--__,0D9 0 I0D4f-----+----l.IH--ll OETAIL-1 CHITla-1 f---------+----< 0010 ID05>-----l--h>"I I006 ELEVATION VIEW MATDO'NG !!CALE: 1150 ri'LS: 111il CORING TUBE ONG LAY LOI N=6 (NB OF OVERLAPS} N=6 (SL MOI NOi CHONG) IN THIS SKETCHE AS EXAMPLE TRONG HlNH ~ LA VI Dl,J ~ ALTERNATE OVERLAPS MOI NOi CHONG SO LE DETAIL AT PILE BOTTOM CHI Tl~T TAI DAY COCSCALE : 1120 • SECTION -A MAT CAT-A SCALE: 1110 TYLE: 1110 APPLICABLE FOR CONFINING ZONE APDUNGCHOVONGH~NCH~ 75 PLASTIC SPACERS@1200 ~ fl G 200 ( 35 DETAIL-1 CHI Tli;T-1 SCALE: 1110 TY LS: 1110 BAR N° BARS/SPACING MARK SO THANH/KHOANG CACH <111nh d!u CONFINING ZONE 014@75 VUNG HAN CH!:: 001 LAPPING AREA 014@225 01i;N TfCH NOi CHONG REGULAR ZONE 014@225 VUNG THONG THIJONG 002 7-025 003 6-025 004 (N-1)x13 -025, (N: number of overlaps) (N-1}x13 -025, (N: s6 IAn tn:lng kh6'p} 005 7-025 006 6-025 SECTION -B MAT CAT-B SCALE: 1/10 TY LE : 1110 APPLICABLE FOR REGULAR ZONE AP DUNG CHO VONG THONG THU'ONG SECTION VIEW-TUBES {ALL PILES EQUIPPED) MAT CAT NGANG-CAC ONG (TRANG B! DOI VOi TAT CA cAc COC) SCALE: 1/10 TY LE: 1110 NOTES:~----------------~ GHICHU: 1. REINFORCEMENTYIELD STRENGTH: FY=420 MPA. 1. Cl/ONG El() CHAY COA COT THi;P fu=.420 Mpa. 2. CONCRETE COVER: C=75 MM.T'i'LI;:: 1/20 la 2. LdPei; TONG eAovi; c=75 mm009 018@2000 ~1----.---.~-.--~~~~~~~---,.~---.~--.--~--.-~~~~~~~~~r==-~~~~~~~----.-,,~~=-~~..----=""~~----r-~....,....-----=~=========================-~ t---+----+-------------+----..___ __..___. CLIENT: • PROJECT IMPLEMENTATIONCONSULTANT FILE NAA1ElTtNBAN/£: SCALETYLE: STAlUSTfNH~G: PROJECT CVAN: HANOIPILOTLIGHT METRO LINE Sedian Nhon. HantiRailwayS1atial ~ I!! CH0 - '"11 1U '""' 1Hl,ICHl~N 01,1 •·· Teclmical Design,.. ::: _ _ _ _ _ _ _ _ _ _ _ _ _ _ _ _ _ _ _ _ _......__ ___.._ ___. """' : • """ ~ "" PIC-TCC<;R~l11"'L»>DWG TIJY£NeooNGsATElOTHITHIfll~M TPHANQI Elatn N~n. GaHi ..... ~ ~ I : ::: ~:::m1111onoflllchnlcaidaolgn ~:~ SYSTRAS.A DESIGNEDBYTHli;rK£: FORMATKHO BANVE: DAlENGAY: Tm.ETtNBANl/E: NHUE RIVER CROSSING ..., 11 1~ 8 10 01/1~0 UPDAJED A.K HRB A. K A1 19/02/10 VU'QTSONGNHUI;: w .!: F % 1C ~8110 Updatad A K CHECKED BYSllf.T !I $i 18 2Ml&'ID UPO>;JED .._·. K HANOIMETROPOUTANRAILTRANSPORT PROJECTBOARD : Thil-gmUllnotbo •- 1..,ed.- « - - - PILES- P151-P154- REINFm g G Maurts 1n wtio1ea hP11rt orul8dfor •nrprupmewllhoul._prkr'Mltsl ~ i ~ t--1-A-+1Ml211--0 -+-F-lm--..-----------..._.._-. K--~---4----l BANDlfANllWNGsA.TllOTHlllANQI ,____· ______. pormllllonot HRll. CQC·P151·P154·00T T1-liOP ~L-~-~..........~-~_:_~.._~_~_~........_ _ _ _ _N~-~-~_:_~_~f!Ol-----~~-~-~-~~-1_~--1.g:_;~_~_~_~..______________....1....~-a~_:_~~-l~-~:OO_raa_'G_uiJM_a_~_o_v~_: ______....L.cH_IE-FrEl_P_~~-NE_:_~-N-Hl_~_™_l~-~_:__.__:_:_~nkt-N_~_-:.:._r:;_~_u_i_~_-_~_':'.._"~-·-::;_.rn(<_pMn_t.y_.1...._DRAl'l1-~-N-O._eAN-ve~~~i=c~-T~E=C.=.....:-G=..:....:R~R~-'Jl/V.:..:....~O=--=-J~0~4~-~18~1~1~0~-=B:.._L..::3~A:...J
  • 53.
    ~ ~ ; ..t i ~ii: 002>----+---t ~ t-------!003 UJ ----? 00 1 C) UJ(!) ts gN j!: PLASTIC I CONCRETE NHl,IA/Bl:TONG SPACERS@1200 VONG Eli;M@1200 0 001 1 STEEL CORING TUBE 1 ONG THePLAY LOI 100/103 010 008 @12000 STEEL SONIC TUBE 50/53 Ong THl:P Sonic 50/53 STEEL SONIC TUBE 50153 Ong THeP Sonic 50/53 004>--------+tl--+--l------<I ~ (!) :5 z 0 009 STEEL SONIC TUBE 50153 Ong THl:P Sonic 50/53 I!! ~ uw .!: F % !I $i !;l 8 uB => 0 Cl j!: UJ (!) ~ z •:J > 009 UJ(!) zz ~Cl- zO_z Cl.(!) { ~·~ ~ CHITl~T-1 ~i 3" 2A I I I I L _J ---r------1006 ELEVATION VIEW MATEllrNG 21111r11 30KM/11 SCALE: 1/50 TYLI;': 1/50 Updatlld 2nd •ubml11lon oflllchnlcal daolgn A.K A.K 10 D1111r!D UPDATED A. K 004 N=5 (NB OF OVERLAPS) N=5 (SL MOI NOi CHONG) IN THIS SKETCHE AS EXAMPLE TRONG HINH V~ LAVI Dl,J PLASTIC I CONCRETE NHIJA/B!: TONG SPACERS@ 200 VONG Ell;'M@1200 0 001 0 009 HRB SECTION A-A MAT CATA-A SCALE: 1/10 TY LI;': 1110 APPLICABLE FOR CONFINING ZONE AP Dl)NG CHO VUNG H~N CHf: SECTION B-B MATCATB-B ' SCALE: 1/10 APPLICABLE FO:R0 REGULAR ZONE AP Dl)NG CHO VUNG THONG THU'ONG BAR MARK KYHIEU THANH COTTHl:P 001 002 003 004 005 006 009 •PROJECT IMPLEMENTATION CONSULTANT Tl1 VAN THl,IC HleN DI,/ AN FILE NAA1ElTtNBAN/£: SYSTRAS.A DESIGNED BYTH1£TK£: A. K SECTIONAL VIEW ~filEqAT TY u; :1110 SHOWING TUBE (ALL PILES EQUIPPED) ONG LO RA {TRANG Bl EJOI VO'I TAT CA cAc CQC) CORING TUBE <'.>NG LAY LOI 001 0 75 DETAIL AT PILE BOTTOM CHI Tl~T TAI £JAY COC SCALE: 1/20 TI' LE: 1120 N" BARS/SPACING SO THANHIKHoANG cACH CONFINING ZONE 018@75 VONG HANCHI: LAPPING AREA 018@225 DIEN TlCH NOi CHONG REGULAR ZONE 018@225 VONG THONG THU'ONG 12-032 12-032 ~N-1)x24-032, (N: number ofoverlaps) IH)i24-D32, (N: s61An tn:Jng khap) 12-032 12-032 025@ 1500 (FULL LENGTH) SCALE TYLE: FORMATKHO BAN VE: A1 STAlUS TfNH~G : Teclmical Design DATENGAY: 19/02110 DETAIL -1-----~35 CHI Tl~T-1 SCALE : 1/10 TYLI;: 1/10 NOTES:------------------~ GHICHU: 1. REINFORCEMENTYIELD STRENGTH: FY=420 MPA. 1. Cl/ONG El() CHAY GOA COT THeP f=420 Mpa. 2. CONCRETE COVER: C=75 MM. 2. Ld P ei: TONG eAovi; c=75 mm PROJECT DI,/AN: HANOI PILOTLIGHT METRO UNE SediDn Nhon•HantiRailwayS1ation TIJY£NflOONG sATElOTHITHIfll~M TPHA NQI Elatn N~n · GaHi NOi Tm.E TtNBANVE: NHUE RIVER CROSSING VU'QT SONG NHUI;: 1C ~B/1D 18 2Ml&'ID Updatad A . K ....._,""-.p;;;_;;;;;.;.;;- u""PDA=TED;...__ _ _ _ _ _ _ _ _ _-+A;..;;...;.;;.K_ _p;.;;;=-+'-'=;;;;;;...--l HANOI METROPOLITAN RAIL TRANSPORT PROJECT BOARD CHECKED BYSlll.T: Thil-D mu1tnotbo 1-1...ec1.-...---G. Maurts 1n wto1eahP11rtorul8dfor•nrprupmewllhoul:._prkr'Mltsl PILES - P152-P153 - REINF CQC • P152·P153- c0TTHl:P 1A 111m/1D REVISION DATE SlrAOOI Nal.Y F1ro1 - . A.K BAN DI/AN allONG sA.raO THI HANQr DESCRIPTION NQI DUNGWAfJOI IHIHl!BI HIM! CllllClllBI IOI.! PROJECTDIRECTORGIAMaocDI/AN: Alain B~cheraau ,___ _ _ _ _ _ ___, parmlllllonotHRB. CHIEF~IGNERCll) NHleMTH1£rK£: P. Amaud ......My_..,.,._.......ng ..... ..,.. .... _rn(llpMnt.y .... ~ ... - ......... ~t~YGnb6ncOoHRB. DRAl'l1NGNO. BANV£SO: PIC-TEC-GRR-WVO-J04-18113-B 3A
  • 54.
    • • ••• u~~ .s ••Hn "' 21/1B'11 "' """"''1DD1/11»10 1C """",. """"1A '""''"REVISION "'"SO'AElOI ""y ""'"'"' A.K r..MauriB . Joing 2nd submission of lechnlcal daalgn A.K G.Maurls -""""' """""" A.K "1.Meurls -""""' ""'"'"' A.K b.Meurls -""""' """""" A.K ~.Meurls .... Arnaud Flllll lssua A.K t3.Meurls -""""'DESCRIPTION -· ,,.,.,. (Hl'CflE!QI NOi DUNG sO'AElOi """ ..T ailrtil;llillil~~ 97 L___J - '--------' -[@l - @) 007 §) §) '-~ - . l' / I ' / I I ' I , ,; ' I $---- ·' ,, ' : 'I ;II ! I '~ ,1 ~ I -- _:::--- ~ ~ / ,,-- ~ I I . . ' l I '---: /~ ~ /-" - -~ --.--~ ' ' I I I' ', ',; I ! ',"-...::-__~ I c1 l. $so PLAN VIEW MAT BANG soSCALE: 1/20 TYLe:1120 CLIENT: 11 PROJECT IMPLEMENTATION CONSULTANT a-io E>Au ru: nrvAN THl,fC Hli;:N DI/ AN SYSTRAS.A HRB HANOI METROPOLITAN RAIL TRANSPORT PROJECT BOARD BAN·~ AN oU'ONo sAroO THI HANQI PROJECTDIRECTORIGINAeocDIJ AN : Alain B~chereau @l] BAR MARK NG BARS/SPACING ElANH DAU SO LLIQNG cAC TiiANH COT ' @l] THANH COT Tii~F TH~PIKHOANG cACH "--' 001 30-D32(2x9@150+2x6@300) ' ' - @- 002 2x16-D32 @150 '· sO--V 003 2x2x16-D18@300 004 4x5-D18 @300 I I 005 2x2x7-D20 @300 I / 8 006 2x2x4-D18 @600 / / - D 007 2x2x2-D25 @600 2x16-D18 @300008 8 -007 s~ -- @L__J ' ' . SDI , - s-"I / I / / @l]A -NOTES: GHI CHU: 1. REINFORCEMENT YIELD STRENGTH: FY=420 MPA. 1. Cll0NG E>0 CHAY GOA c0T TH~P fc=420 Mpa. 2. CONCRETE COVER: C=75 MM. 2. LdP ei: TONG Move: c=75 mm FILE NAMEITtN BANv£ : SCALEITYLe : STATUSTfNHTR6NG: PROJECTIDIJAN : HANOI PILOT LIGHT METRO LINE Sedian Nhon •Hanci Railway Station PIC-TEC-GRR-IHVOJ04-181:306_llADWG - Technical Design Tuv£N SOONG sAT E>0 THI THI -E>li:M TP HA N()I Elofn N~n ·Ga Hil NOi DESIGNED BYTHltrK£ : FORMATKHO BAN ve: DATEINGAY: TTTl.EITtNBANVE: NHUE RIVER CROSSING A.K A1 19/02110 WQT SONG NHUe CHECKEDBYsoAT: PILE CAPS - P151-P154 - REINF - PLAN VIEWThis d'awilg must not be eilhlr IDMed, o:ipisd orOlharwiae rep'Ocluoed G. Maurls In - er h pmrt er uled for •nr prupmewthoullho prkrwrlllln pmnnllillon ol HRB. MO COC - P151-P154 -COT THl:P - ~T BANG CHIEF CESIGNERICll) NHla,lTHl£T Ke : Mn vii My kh!lng 4JVC ~RI) d,lng - mol h"rlh lh)c, m(ll phln hrly DR.WING NO.I BAN~ SO : I3AP.Amaud kllln ~ mll kh!lng41VC..,Mngf"blngvllnbllncilll HRB. PIC-TEC-GRR-WVO-J04-18130-B
  • 55.
    ~ ~ "' I!! ~ ~ 11 uiw .!: F % !I $i !;l 8 ~ uii: B ~ sD I os ~ '"' ~ ~ ' ' ' "' 'A' "I~ ~0~ c ~ ~ I/ I~ ~ ll--+-------9] A _I l I ~ r./ - z]/ / / 7 -' .e.O3J...._______. _,/ "' / _.L / ' ' ' 'I I I '- I' ' ' ' " 'J ' I I ' I""""" - '. '. ' ' I"""'L__J@ l_~ I ~ _) ®L__J L__J® <§L....::::::.... 002 ...._______. SECTION A-A MAT CATA-A FOR PIER STARTERS BARAND BOTTOM CHO c:AC THANH aAlJ CUA TRU VA.£JliY TRANSVERSE REINFORCEMENT SEE DWG. NO COT THEP PHllONG NGANG XEM BAN v£SO PIC-TEC-GRR-WVO-J04-18210-B TO PIC-TEC-GRR-WV0-.104-18212.S PIC-TEC-GRR-WVO-J04-1824G-B TO PIC-TEC-GRR-WV0-J04-18242-8 FOR PILE STIRRUPS TRANSVERSE CHO CHIEU NGANG QUAI CHlJ U CUA CQC REINFORCEMENT SEE DWG. NO BO 1R1 c0T TliEP XEM BAN v£SO PIC-11=.1,;-GRR- '.':::~v '8113-B ~ / / / / 7 / ..... '~ ~ ~ I/ I ' "'' ' "" L__J @)- ---- SCALE: 1/20 TY Li1::1120 / / / / / / '~ ~~ 00L) ...._______. "' ' ' ' '' .......... ..... ~ ' ' 1' I ,, l~L I ,@, ® L__J SECTION 8-8 MAT CAT B-B SCALE: 1/20 ITLl;:1/20 sD / / r~ · ~ ~ ' I '- '-I -~"'"'~ 0 ...._______. s ~ 9-- 0] (§) L__J o----+----+----------------+----....___....____. Q.IENT: o----+----+----------------+----....___....____. CHOflAuru: •PROJECT IMPLEMENTATION CONSULTANT Tl1 VAN THl,IC HleN DI,/ AN FILE NAA1ElTtN e,l,i/£: 3" 21/11Y11 Upda111d 2A 3004'11 2nd aubml11lon at'lechnlcal dMlgn SYSTRAS.A DESIGNED BYTHli;rK£ : A. K A.K G.M1nnto LI. Jalng HRBA . K n . Moulll D. Amoud 1C ~8110 Upda1ad 18 2Ml&'"!O UPDATED 1A 111m/10 Fl'"111a» REVISION DATE DESCRIPTION SlrAOOI Nal.Y NQI DUNGWAfJO! A . K n . Moulll D. Amoud A . K 1l. Mou111 ... Amoud HANOI METROPOLITAN RAIL TRANSPORT PROJECT BOARD A . K ll. Moultl P. Amoud BAN DI/AN llWNG sA.Ta0 THI HA NQI IHIHl!BI' CllllClllBI' l>&IJ"lllllill PROJECTDIRECTORIGIAMaocDI/AN: HIM! IOI.! otl1t11;M1111!rl! Alain B~cheraau CHECKED BYSlll.T: G. Maur1s CHIEF ~IGNERCll) NHleMlll1£rKe: P. Amaud - NOTES:-------------------- GHICHU: SCALE TYu;: FORMATKHO BAN VE: A1 STAlUS TfNH~G : Teclmical Design DAlENGAY: 19/02/10 Thil <Rwi'ID mUll:notbe eithlrlOlrled,<q>ied«otl'lll'Wile NP'Odiacl ln wtdeah P11rtorul8dfor•nr prupmewllhoul:.. prlor'Mltsl parmlllllonot HRB. 1. REINFORCEMENTYIELD STRENGTH: FY=420 MPA. 1. Cl/ONG El() CHAY COA COT THEP fu=.420 Mpa. 2. CONCRETE COVER: C=75 MM. 2. Ld P BE TONG eAoVE c=75 mm PROJECT CVAN: HANOI PILOTLIGHT METRO LINE Sedian Nhon•HantiRailway S1atial TIJY£N flOONG sAT00 THITHIfllEMTPHA NQI Elatn N~n · GaHi NOi Tm.ETtNB,l,iVE: NHUE RIVER CROSSING VU'QT SONG NHUI;: PILE CAPS - P151-P154- REINF-SECTIONS MO CQC- P151.f'154 • C0TTHIOP - MAT cAT ......My_..,.,._......."11 ..... ..,.. .... _m(llpMnt.y DRAl'l1NGNO.' BANVEso: I.... ~ ... - .........~t.......b6ncOoHRB. PIC-TEC-GRR-WVO-J04-18131-B 3A
  • 56.
    • • ••• u~~ .s ••Hn "' "'1D 1C ,. 1A REVISION SO'AElOI [6 ' [ s /, D ~ @l &--- -- ---8 --(009) I , [S / ~ 21/1B'11 ""'"'"'"""11 2nd submission of lechnlcal daalgn D1/11»10 """"'"" """" ""'"'"' """" """"'"" '""''" Flllll lssua "'" DESCRIPTION ""y NOi DUNG sCrA.ElOI --- --- t ---DOS ---001 003 010 010 I - / I/ / I I / I / -- I / T . ' I ~ - - - - - - - - -1 - - - . . I ' ~ - / ' ~ I / / I / I " " -- (§) @~ B --- PLAN VIEW MAT BANG • SCALE : 1125 ijlt :1125 CLIENT: 11 PROJECT IMPLEMENTATION CONSULTANT a-io E>Au ru: nrvAN THl,fC Hli;:N DI/ AN A.K r..MauriB . Joing SYSTRAS.A A.K G.Maurls ·""""' HRBA.K G.Meurls ·""""'A.K b.Meurls ·""""'A.K ~.Maurls .... Arnaud HANOI ME'TROPOUTAN RAIL TRANSPORT PROJECT BOARD A.K G.Maurls ·""""' BAN·~ AN oU'ONo sAroO THI HA NQI -· ..,.,. (Hl'CflE!QI PROJECTDIRECTORIGINAeocDIJ AN : "'" ..T ailrtil;Mllil~~ Alain B~chereau t JDOB 004 J c / / • /~ D~ @l BAR MARK N' BARS/SPACING 001 48-32@)150 ~ 001 72-D32@l150 - - - - ~ OOl 48-D32@l150 s~ 004 136-D18[2 x24@l3 00+ 2x44@l 300 I 005 44-D18(2x 2x6@l3 00+ 2x2 x5@l30 0I (009)-- 005 2x30-D16 @1600 007 2x15-D18 @l600 008 2x2x12-D18 @1300 009 2x13-D25 @1300 010 42-032124@)300+18@l150] 011 72-032@1150 / I @) - ' / / ' ~' -' T @l D -NOTES: GHI CHU: 1. REINFORCEMENT YIELD STRENGTH: FY=420 MPA. 1. Cll0NG E>0 CHAY GOA c0T TH~P fc=420 Mpa. 2. CONCRETE COVER: C=75 MM. 2. LdP ei: TONG Move: c=75 mm FILE NAMEITtN aMIv£ : SCALEITYLe : STATUSTfNHTR6NG: PROJECTIDIJAN : HANOI PILOT LIGHT METRO LINE Sedian Nhon •Hanci RailwayStation PIC-TEC-GRR-IHVOJ04-18141>6_l1ADWG - Technical Design Tuv£N SOONG sAT E>0 THI THI -E>li:M TP HA N()I Elofn N~n ·Ga Hil NOi DESIGNED BYTHltrK£ : FORMATKHO BAN ve: DATEINGAY: TTTl.El'ftNBANVE: NHUE RIVER CROSSING A.K A1 19/02/10 WQT SONG NHUe CHECKEDBYsoAT: PILE CAPS - P152-P153 - REINF - PLAN VIEWThis d'awilg must not be eilhlr IDMed, o:ipi!lcl orOlharwiae rep'Ocluoed G. Maurls In - er h pmrt ar uucl for •nr prupmaWlhoullho prkrwrlllln pennllillon ol HRB. MO COC - P152-P153 -COT THl:P - ~T BANG CHIEF CESIGNERCll) NHla,lTHl£'TK£ : Mn vii My kh!lng 4JVC ~RI) d,lng - mol h"rlh lh)c, m(ll phln hrly DR.WING NO.IBANVESO : I3AP.Amaud kllln ~ mll kh!lng41VC..,Mngf'blngvllnbllncilll HRB. PIC-TEC-GRR-WVO-J04-18140-B
  • 57.
    ~ --- ~ FORPIER$TARTER$ BARAND BOTTOM @ 9CHO cM: "THANH llAU ct!A1RU VI. Ill('( "TRANSVERSE REINFORCEMENT SEE DWG. NO iC0r Tl1EP PHI/ONG NGANG Xl!!M !Wlv! SO PIC-TE...._,RR-wvu..J04-1822CH! TO -- I PIC-TEC-GRR-WVO..J04-18224-B PIC-TEC-GRR-WVO..J04-1823CH!TO ePIC-TEC-GRR-WVO..J04-18234-a TO ~ 009 i 009 ~ II I I I I I I I I I I I ~ VHHY w ~ b I I I I I v I I I I I I I I I r-- . . '; ~ --,, - - - - - -' - - - . - - ' - . 1__.- 'I' "' ,. ; ' 0 r--- ' ~ v D005 005 !'--. 1__.- r--- I I I I I I / / I I 1_..- r-- 1__.- t 19---- I I I Ir--- I I --- --- I I / 1__.-~s [ ] t'--._ ~ fo§ 1_,,- [ r-- I I I / I I I I 1__.- ~s ]8---~>+ >+~ "--- I _,,. r--- I I I / / I I v I I I I !'--. ,# ~ 1__.- - @) ......... ::: : : : :~: : : : " , ----- T_ -' ....:". . . . . . . . . . . . . . . . . . . . . . . _ . I I I I / ! I I / V I I 11 11 1 111 1 111 11 I I I I I I I I I I I I I I I I I I I I I I I I I I I I I II I .________.@ " " "' JUlujlil[l[ llUl lilllit [ ~llJlillliL 9 SECTION A-A 9 -- MAT CATA-A .________. •SCALE : 1125 tY 16 :1125 I ~9 ---9 ~s I I I I I I I f-1r/ '/ ,/ .; I I I I I I I II /' /~ /~ I ----- / 7 7 7 7 7 7 7 ./ ./ ./ ./ ./ ./ ./ ./ ./ ./ ./ ./ ./ ./ I / ---- Os ----- -,, ,, so~ ~ v ----- v r--- I I I I I v !'--. 1__.- [ ]8- r--- I I --- --- I I I v ~s [ ] t'--._ ·fo7) (oD7) 1__.- !'--. I I I I I v [8 8 ]r--- v r--- I I I I I 1__.- r--- ~ I ' v 9 ~ !' ,. ! ,. ,. !' ,. ,. ,. ,. !' ,. ,. r I 1 r r r ' r I r r ;; r rrrrrrrrrr r !' I I I I I 7 777 7 7 7 - j I I / I l l / I l l ! I I / I l l I I I I J ! I I I s I I I I I I I II I ! ! l Il l VI I ~ I 1 l ! l / l ! l / 1 11 / / ! I l l / IJ ' I/ I I A I/ VI IYI I I I ~ Jill WITIIBL UIJL wrn1 ' 011 002 SECTION B-8 - NOTES: GHICHU: MAT CAT B-B 1. REINFORCEMENTYIELD STRENGTH: FY=420 MPA. 1. Cl/ONG El() CHAY COA COT THi;P fu=.420 Mpa. SCALE: 1125 2. CONCRETE COVER: C=75 MM. !YI• :1125 2. Ld P ei; TONG BAovi; c=75 mm Q.IENT: •PROJECT IMPLEMENTATION CONSULTANT FILE NAA1ElTtNe,1,1/£: SCALETYLJ;: STAlUS TfNH~G : PROJECT CVAN: HANOIPILOTLIGHT METRO LINE Sedian Nhon •HantiRailway S1atial I!! CHOflAu T1: T1 VAN THl,IC HleN DI,/ AN Teclmical Design ~ PIC-TEC-GRlt-Wv'OJD4-11141-B_»..DWG - TllY£NflOONG sAT00llilTHIfll~M TP HANQI Batn N~n · Ga Hi NOi SYSTRAS.A u 3" 21/11Y11 Upda111d A.K ll.Miwrto . Jalng HRB DESIGNED BYTH1£TK£: FORMAT KHO BAN VE: DAlENGAY: Tm.E~Ne,l,IVE : NHUE RIVER CROSSING 2A 3004'11 2nd aubml11lon at'lechnlcal dMlgn A.K n. Mowrto ... Arnaud A. K A1 19/02110 VU'QT SONG NHUI;: w .!: F % 1C ~8110 Upda111d A.K n. Mowrto ... Arnaud CHECKED BYSlll.T: PILE CAPS - P152-P153- REINF-SECTIONS!I $i 18 2Ml&'IO UPDATED A.K ll. Miwrto ... Arnaud HANOI METROPOLITAN RAIL TRANSPORT PROJECT BOARD Thil <Rwi'ID mUll:notbe eithlrlOlrled,<q>ied«otl'lll'Wile NP'Odiacl !;l 8 BAN DI/AN llWNG sA.ra0 THI HA NQI G. Maur1s ln wtdeah P11rtorul8dfor•nr prupmewllhoul:.. prlor'Mltsl MO CQC- P152.f'153 • C0TTHIOP ·MAT cAT u 1A 111m/10 Flr"111a» A.K ll. Mowrto P. Arnoud parmlllllonot HRB. REVISION DATE DESCRIPTION IHIHl!BI' CllllClllBI' l>&IHlllill PROJECTDIRECTORGIAMaocDI/AN: CHIEF ~IGNERCll) NHleMlll1£rK£: ......My_..,.,._......."11 ..... ""'"""-'""'iHn'-Y DRAl'l1NGNO. BAN VESO: I3AB SLrAOOI Nal.Y NQI DUNGWAfJOI HIM! IOI.! otl1t11;M1111!rl! Alain B~cheraau P. Amaud .... ~ ... - ......... ~t~YGnb6ncOoHRB. PIC-TEC-GRR-WVO-J04-18141-B
  • 58.
    ~ ~ ~ •ii •ii uI~~ .s •• ~ H •n v- B ~ 0 012 28-020 (Ol2SOmm 0 011 43-020 @l70mm ~ ~ VIEW 1-1 GQC NHiN 1-1 SCALE: 1/50 TY LI;.: 1/50 ----$ B J1B----.$1J . 4-032 02B 2er, [2 23-032 001 j 23-032 00 t---+--+---------------+---+---1----1 ~~ru: "' 21/1B'11 A. K . MauriB •Joing "' """11 2nd submission of lechnlcal daalgn 1D D1/11»10 v- B ~ lil "'~ 0 012 0 011 HRB + ~ ~ ~ VIEW2-2 GQC NHiN 2-2 SCALE: 1/50 Ti"LI;.: 1/50 PROJECT IMPLEMENTATION CONSULTANT nrvAN THl,fC Hli;:N DI/ AN SYSTRAS.A 1C """"18 """" Updated A. K . Ameud 1-~-<'=~+=u"°"=""~------------+A~.K~--+==-+-.~-=,'"-' HANOI ME'TROPOUTAN RAIL TRANSPORT PROJECT BOARD 1A 31/01/10 REVISION "'"SO'AElOI ""y Flllll lssua A. K .Arnaud BAN DI/AN DIJ'bNG sA.T£>0THI HANQI DESCRIPTION NOi DUNG sCrA.ElOI IEIH!lllr CIEOO!lllr (Hl'CflE!QI Hr!G: lni.T ailrtil;Mllil~IG: PROJECTDIRECTORIGINAeocDIJ AN : Alain B~chereau 4-032 6-032 ----$ B 01D l 1]1c----.$ I 02 r 2cr, [2 001 002 8 ~ FILE NAMEITtN aMIv£ : PIC-TEC-GRR-IHVOJ04-18211>6_l1ADWG DESIGNED BY THltTK£ : A.K CHECKEDBYsoAT: G. Maurls CHIEF CESIGNERICll) NHla,lTHl£TK£ : P.Amaud lil "'~ SCALEITYLe : FORMATKHO BAN ve: A1 v- ~ o/- ~ 0 012 0 011 STATUSTfNHTR6NG: Technical Design DATEINGAY: 31/01/10 This d'awilg must not be eilhlr IDMed, o:ipiecl orOlharwiae rep'Ocluoed In - er h pmrt er uled for •nr prupmewthoullhll prkrwrlllln pmnnllillon ol HRB. 017 l5-032 (11300 4-032 4-032 ~ ~ ~ ~ SECTION 3-3 M~~L~~ri3-3 Ti'LI;.: 1/50 ~ ----$ 01[ l r2~ ~I [2 I 110 1] ----.$ 01B l 02B r lil "'~ 001 002 8 ~ NOTES:--------------- GHI CHI.I: 1. REINFORCEMENT YIELD STRENGTH: FY=420 MPA. 1. CUONG £>0 CHAY COA COT TH!:P fc=420 Mpa. 2. CONCRETE COVER: C=50 MM. 2. LdP ee TONG ~ ve: c=so mm PROJECTID1JAN : HANOI PILOT LIGHT METRO LINE Sedian Nhon •Hanci RailwayStation Tuv£N SOONG sAT E>0 THI THI -E>li:M TP HA N()I Elofn N~n ·Ga Hil NOi mLEl~NBANt, NHUE RIVER CROSSING WQT SONG NHUe DR.WING NO.IBANVESO : PIERS - P151 - REINF lRIJ - P151 - COT THl:P PIC-TEC-GRR-WVO-J04-18210-B 3A
  • 59.
    ~ ~ 2 •ii •ii uI~~ .s •• ~H • n ----~-~-:::-:::-:::-:::-~·r- SECTION A-A MAT CATA-A SCALE: 1/10 T'i'LI;:: 1/10 002 0020 012 SECTION B-B MATCATB-B SCALE: 1/10 Ti' LI;.: 1/10 1 I I ~J I I I t---+---+---------------+----1----1------< CLIENT: t---+---+---------------+----1----1------< a-iOElAuru: "' 21/1B'11 Updated A. K . MauriB •Joing "' """11 2nd submission of lechnlcal daalgn A. K . Maurls . Arnaud 1D D1/11»10 HRB 1C """"18 """" Updated A. K .Ameud t-=-+==-+~,,.,=...,~-------------+A~.~K---1===_,_~.-=~,---< HANOI METROPOLITAN RAIL TRANSPORT PROJECT BOARD 1A 31/01/10 REVISION "'"SO'AElOI ""y DESCRIPTION NOi DUNG sCrAElOI A. K .Ameud BAN DI/AN DllbNG sA.To0THI HANQI IEIH!lllr CIEOO!lllr (Hl'CflE!QI Hr!G: lni.T ailrtil;Mllil~IG: SECTION C-C MATCATC-C SCALE: 1110 TYLI;:: 1110 SECTION D-D MATCATD-D SCALE: 1/10 Ti" LI;.: 1/10 PROJECT IMPLEMENTATION CONSULTANT nrvAN THl,fC Hli;:N DI/ AN SYSTRAS.A PROJECTDIRECTORIGINAeocDIJ AN : Alain B~chereau FILE NAMEITtN aMIv£ : PIC-TEC-GRR-IHVOJGl-18211-B_llADWG DESIGNED BYTHltrK£ : A.K CHECKEDBYsoAT: G. Maurls CHIEF CESIGNERICll) NHla,lTHl£TKe : P.Amaud SCALEITYLe : FORMATKHO BAN ve: A1 STATUSTfNHTR6NG: Technical Design DATEINGAY: 31/01/10 This d'awilg must not be eilhlr IDMed, o:ipi!lcl orOlharwiae rep'Ocluoed In - er h pmrt ar uucl for •nr prupmaWlhoullho prkrwrlllln pennllillon ol HRB. 0110 SECTION E-E MAT CAT E-E SCALE: 1/10 TYLS: 1110 SECTION F-F MAT CAT F-F SCALE: 1/10 TYLS: 1/10 NOTES: GHI CHI.I: 001 J 002 l 1. REINFORCEMENT YIELD STRENGTH: FY=420 MPA. 1. CUONG £>0 CHAY COA COT TH!:P fc=420 Mpa. 2. CONCRETE COVER: C=50 MM. 2. LdP ee TONG ~ ve: c=5D mm PROJECTID1JAN : HANOI PILOT LIGHT METRO LINE Sedian Nhon •Hanci RailwayStation Tuv£N SOONG sAT E>0 THI THI -E>li:M TP HA N()I Elofn N~n ·Ga Hil NOi mLEl~NBANlt: NHUE RIVER CROSSING WQT SONG NHUe DR.WING NO.IBAN~ SO : PIERS - P151 - REINF lRIJ - P151 - COT THl:P PIC-TEC-GRR-WVO-J04-18211-B 3A
  • 60.
    c c Total Lengthsand Weights No. 1~fNboar No. l01Nb~_r,~ Total Number of members 1 Boe Type Total Shape Bend Boe Type Shape Bend mark ocd of ineo(h No Length [ode Type Dimensions Shape R"" mark ocd of 1n eo(h No Length [ode Type Dimensions Shape R"" Type T Type R BENDING DIAMETERS (mm) size m'mb m~mb s12e memb memb mm mm mm a mm mm mm a Diamders 6 8 10 12 14 16 18 20 22 25 28 32 36 40 Total Weight Total Total Weight Total ~ ~ Diameter Length per unit Weight Length per unit Weight Hooks 36 48 60 72 84 96 108 120 m 150 224 256 288 320 001 D32 1 23 23 10690 11 1 A=10210 B=SS6 017 D32 1 5 5 4630 11 1 A=103S B=3700 lml (kg/m) lkg) lml (kg/ml lkg) D [Type 11 Frames 24 32 40 48 56 64 108 120 132 150 224 256 288 320 6 0 0.222 0 00 IType 2] ~ 8 0 0.395 0.00 Hooks 0 0 0 0 0 0 0 0 0 0 0 0 0 0 018 D32 1 3 3 3360 11 1 A=1419 8=2046 R [Type 11 10 0 0.617 0 00 Frames 0 0 0 0 0 0 0 0 0 0 0 0 0 0ITvne 2) ~ 12 0 0.888 0.00 QI[ D32 1 4 4 4960 11 1 A=1419 8=3646 14 0 1210 0.00 16 0 1.580 0 00 18 0 2.000 0.00 BAR DIMENSIONS OID D32 1 4 4 3650 00 A=3646 ~ 20 475 2 470 1173.23 - THE DIMENSIONS ARE GIVEN ON THE OUTSIDE FIBER OF THE REBAR [SEE BELOW) ~ 22 0 2 980 0 00 -THE TOTAL LENGTHS ARE CALCULATED ON THE BASIS OF THE CENTERLINE 002 D32 1 23 23 8810 11 1 A=Bl2B B=5B6 25 0 3 850 0.00 (ISO 3766:2004 - METHOD B) 28 0 4.830 0.00 - THE BENDING ANGLES ARE GIVEN IN DEGREES ~ 32 600 6 310 378S.05 4; E 028 D32 1 4 4 5180 11 1 A=1419 B=38S9 36 0 7 990 0.00 ., ~ 40 0 9.860 0.00 02[ D32 1 6 6 6780 11 1 A=141B B=5459 ~ 'Type T Type R 02D D32 1 4 4 5570 00 A=5566 ~ Total Length - Bended: 1038 Total Length - Straight 37 a ~ Total Length (m): 1075 011 D20 1 43 43 6690 99 1 A=B4D R=B27 "'Lop.=1xB40 Total Weight - Bended 4725 ~ Total Weight - Straight: 233 012 D20 1 28 28 6690 99 1 A=B40 R=B1'J Total Weight (kg) 4958 •J Lop =1xB40 ~ Mean Size Imm] GENERAL WEIGHT kg I 27 .4- I I 4958 I A•m•CAD• -OTP- A•m.EAD•-OTP- A•m•CAD• DTP AmoCAD• -OTP- CLIENT: 11 PROJECT IMPLEMENTATION CONSULTANT FILE NAMEITtN BAN v£ : SCALEITY Le: STATUS TfNHTR6NG: PROJECTIDIJAN : HANOI PILOT LIGHT METRO LINE Sedian Nhon •Hanci RailwayStation • a-io E>Au ru: TJVAN THl,fC Hli;:N DI/ AN PIC-TEC-GRR-ll'No.ID4-18212'6_llADWG - Technical Design Tuv£N SOONG sAT E>0 THI THI -E>li:M TP HA N()I Elofn N~n ·Ga Hil NOi • SYSTRAS.A u "' 21/11Y11 """"'"' A.K 3.Maurls ."'"' HRB DESIGNED BY THltr K£ : FORMATKHO BAN ve: DATEINGAY: TTTlEITtN BAN VE: NHUE RIVER CROSSING 2A """'"' 2nd aubmllalan ar lectmlcal daalgn A.K ].Maurls ·"'""' A.K A1 23/06/10 WQT SONG NHUe ~~ 1C D1/11Y1D """""" A.K G.Maur1s ·"'""' CHECKEDBYsoAT: This d'awilg must not be eilhlr IDMed, o:ipisd orOlharwiae rep'Ocluoed PIERS - P151 - REINF - BAR LIST.s HANOI METROPOLITAN RAIL TRANSPORT PROJECT BOARD •• ,. """" """"'"' A.K ~.Maurls P.Amaud G. Maurls In - er h pmrt ar uled for •nr prupmeWlhoullhll prlarwrlllln TRV. P151. cOrTHi:.P. DANH MVC COTTH!=:P H 1A """" Flllll lsaua A.K 3.Maurls ·"'""' BAN·~ AN oU'ONo sAroO THI HANQI pmnnllillon ol HRB. REVISION "'" DESCRIPTION -· ..,.,. (Hl'CflE!QI PROJECTDIRECTORIGINAeocDIJ AN : CHIEF CESIGNERICll) NHla,lTHl£'T Ke : Mn vii My kh!lng 4JVC ~RI) d,lng - mol hhh lll)c, rr(ll phln hrly DR.WING ND.IBAN~ SO : n SO'AElOI ""y NOi DUNG sO'AElOI m• ..T ailrtil;Mllil~~ Alain B~chereau P.Amaud kllln ~ mll kh!lng41VC..,Mngf'blngvllnbllncilll HRB. PIC-TEC-GRR-WVO-J04-18212-B 3A
  • 61.
    ~ ~ '' I!! !iil ~I:! ut iw .!: F % !I $i !;l 8 ~ uii: B I I ~ ll002 032 I I I -, DETAIL A I I,_ ·- V cHJTIETA ~ro+ I I I I v 21 I I 1 l001 032 I I ~ I I I I I I I l 003 032 I I I ~ I L - - - ·- - _ _J £ ~ ,i.: ,i.:.. -} c::::::J 017 D12 (cil200 '· l004 2x2•12-032 v-- £1~ ,~ ,~ ..; " D12c::::::J 017 (dl300 £~ ,, ,i.:.. -} c::::::J 017 D12 (cil200 '· ~--- --- --- - --- -- -- LJ 04ld04 007 12-032 -- ~ --- ~ B SECTION A-A M~T CAT A-A SCALE: 1/50 ri' Li;: 1/50 o----+---+---------------_.____....__ __.....__ ___. Q.IENT: o----+---+---------------_.____....__ __.....__ ___. CHOflAuru: 3" 21111r11 Updatlld A.K 2A 30KM/11 2nd •ubmll1lon oflllchnlcal daolgn A.K 10 D1111r!D UPDATED A.K 1C ~B/1D A.K v 012 018 a@l200 012 019 a@l200 020 012 0@l100 -v012 @a(cil300 020 D@l300 012 012 -(o19)0@l300 012 018 a@l200 012 019 0,-----@l200 020 -€VD@l100 LC HRB 8I() "' 0 ~ "' Updatad 18 2Ml&'ID UPDATED A.K HANOI METROPOLITAN RAIL TRANSPORT PROJECT BOARD 1A 31m1/1D Flrotlla» A.K1----+---+----------------4--------11-------l BAN DlfAN llWNG sA.rllOTHI llANQI REVISION DATE SLrAOOI Nal.Y DESCRIPTION NQI DUNGWAfJOI IHIHl!BI' HIM! CllllClllBI' IOI.! 8 ~ t1i.....I() ~ 8 ~ •PROJECT IMPLEMENTATION CONSULTANT 11 VAN lHl,IC HleN DI,/ AN SYSTRAS.A PROJECTDIRECTOR GIAMaocDI/AN: Alain B~cheraau FILE NAA1El~N BAN/£: DESIGNED BYTHli;rK£ : A. K CHECKED BYSlll.T: G. Maur1s CHIEF~IGNERCll) NHleMlll1£rKe: P. Amaud 4 1 ~oaJ1 LJ 18-032 00 SECTION 8-B M~T CAT B-B SCALE TYLE: FORMATKHO BAN VE: A1 SCALE: 1/50 TYLI;: 1/50 STAlUS TfNH~G : Teclmical Design DAlEINGAY: 31/01/10 Thil <Rwi'ID mUll:notbe eithlrlOlrled,<q>ied«otl'lll'Wile NP'Odiacl ln wtdeah P11rtorul8dfor•nr prupmewllhoul:.. prlor'Mltsl parmlllllonot HRB. ......My_..,.,._.......ng ..... ..,.. .... _rn(llpMni.y .... ~ ... - ......... ~t~YGnb6ncOoHRB. NOTES : ~~~~~~~~~~~~~~~ GHI CHIJ: 1. REINFORCEMENT YIELD STRENGTH: FY=420 MPA. 1. CllONG DO CHAY COACO'r THEP fc=420 Mpa. 2. CONCRETE COVER: C=50 MM. 2. LdP BE TONG BAf> VS c=50 mm PROJECT DI,/AN: HANOI PILOTLIGHT METRO UNE Sedian Nhon•HantiRailway S1atial TIJY£NflOONG sATElOTHITHIfll~M TPHANQI BatnN~n · Ga Hi NOi Tm.E~NBANVE : NHUE RIVER CROSSING VU'QT SONG NHUI;: PIERS-PIERCAP - P152 - REINF - 1/3 TRV-MO TRIJ • P152 - COT THIOP • 1/ 3 DRAl'l1NGNO. BANV£SO: PIC-TEC-GRR-WVO-J04-18220-B 3A
  • 62.
    ~ ~ 2N I:! t i ~ii: ~- ,, - 1111- ·- ·- -·-·-·-T. - I' ~ - 17. ·- - ' r1 ] ' II/ ill p."0 , ll . ,. . • • • --. --. -. . . rV ~"" ' ) ~ v-~: I .1 I~ ~I! JU. 1• . . . . . . . - - - - - - - . 'R I I I I I 4 ""Tl - - - - - - ITT '% II I II 013 014 016 D16 013 014' ' U~ ~ 11 II I I LJ 020 020 I I 016 009 010 - - - - - - II II II I II II I II 005 006 D32 '. UL _ill 11 032 005 006 / II I "'l' I I 032 005 006 ; 032 ' ' - - - I I 005 006 ~ li_ / , I II I!! ~ uw .!: F % !I $i !;l 8 uB I 1 1 II .ll II J II i....i__ - - - - --irr II ' II I J I "T ...,.__,. I I II 77 77 __, ~---- · --- - - - · - - - - - - - - - - - - - - - · - DETAIL B CHI TIET B SCALE: 1/10 T'i'LI;:: 1110 o----+---+---------------_.____.___ __...__ __. Q.IENT: o----+---+---------------_.____.___ __...__ __. CHOflAuru: 3" 21111r11 Updatlld A.K 2A 30KM/11 2nd •ubmll1lon oflllchnlcal daolgn A.K 10 D1111r!D UPDATED A. K 1C ~B/1D HRB 016 · - - • 011 I PROJECT IMPLEMENTATION CONSULTANT 11 VAN lHl,IC HleN DI,/ AN SYSTRAS.A 18 2MIBl1D Updatad A . K UPDATED A. K HANOI METROPOLITAN RAIL TRANSPORT PROJECT BOARD 1----1---+-F....lrot--..-------------+-,.-_K---+----1----l BAN DI/AN llWNG IA.TllOTHI llANQI1A 31m1/1D REVISION DATE SLrAOOI Nal.Y DESCRIPTION NQI DUNGWAfJOI IHIHl!BI' HIM! CllllClllBI' IOI.! PROJECTDIRECTOR IGIAMaocDI/AN: Alain B~cheraau ~-, - ·- - - ~ - - - - - - I I I !/'' !/'' ,)/ ' 1::1/ 1J/ 'I• </ u </ I• </ u I4x6-D16 015 6-016 :~, ~I 005 006 032 14 v v LJ 020 020 016 011 009 D16 016 009 016 010 - - - - - - - - - - - - - - - - - - - - - - - - - - - - - - - - - - - - · · -- - · - - FILE NAA1ElTtN e,l,i/£: DESIGNED BYTH1£TK£ : A. K CHECKED BYSlll.T: G. Maur1s CHIEF~IGNERCll) NHleMTH1£rK£: P. Amaud DETAIL A CHI TIET A NOTES : ~~~~~~~~~~~~~~~ GHI CHIJ: 1. REINFORCEMENT YIELD STRENGTH: FY=420 MPA. SCALE: 1/10 T'i'LI;:: 1110 1. CllONG DO CHAY COACOT THEP fc=420 Mpa. 2. CONCRETE COVER: C=50 MM. 2. LdP BE TONG BIID VS c=50 mm SCALEITYLE: FORMATKHO BAN VE: A1 STAlUS TfNH~G : Teclmical Design DATEINGAY: 31/01/10 Thil <Rwi'ID mUll:notbe eithlrlOlrled,<q>ied«otl'lll'Wile NP'Odiacl ln wtdeah P11rtor ul8dfor•nr prupmewllhoul:.. prlor'Mltsl parmlllllonot HRB. ......My_..,.,._.......ng ..... ..,.. .... _rn(llpMnt.y .... ~ ... - ......... ~t~ YGnb6n cOo HRB. PROJECTIOI,/AN: HANOI PILOTLIGHT METRO LINE Sedian Nhon•HantiRailway S1atiCln TIJY£N flOONG sAr ElOTHITHIfll~M TP HANQI Elatn N~n · Ga Hi NOi mtETtNB,l,iVE: NHUE RIVER CROSSING VU'QT SONG NHUI;: PIERS-PIERCAP - P152 - REINF - 2/ 3 TRV·MO TRV • P152 ·COT THIOP • 2 / 3 DRAl'l1NGNO.IBANVESO: PIC-TEC-GRR-WVO-J04-18221-B 3A
  • 63.
    ~ 91-020 -@D ~ ll 001 111100/300 Dl2 II I I /F .t=~ " ~' ;=;= "" "" ~l003 Dl2 ~" Ill Ill Ill ~~ ·111 ~ F----8~ ~ "' ~ u ~~ u ~ 4x46-D12 018 ~ ~ = I [ I'Oi1' 4x46-D12 46-012 019 I>;;,:;I ~ ll ;01 ~ ll;02 021 005005 021 :lALTERNATE 006 006Ill 11-IAYTiil: D ~D c::: ---, -N 111 =--- 'i'... 4x10-D16 M =;; D D M 009 D D @1200 N ~v / , ~ ~ --u 'l 'I '1111 I u ~ ~I003 D32 • I I ,. ~ - - 10x8-D16 "" != != !!= (D275x200 011 ~ ll 001 ~ fe ~ ~ ~ I-«: •Dl2 I ~ oos 006 D32 la ...... - a D32 oos 006 I SECTION C-C - ~ -- -M,;TCAT C-C - • c-- SCALE: 1/10 c-- )9 -« •Ti' LI;.: 1/10 - ""' -- • 10-016 I - - - -010 @1200 &-- • E» -«: • ~ • E» I-«: •014 2x3-D16 L... •• ....ALTERNATE TI-IAYTHI: - -D - - • E» I-«: •~ f--- f--- 'l a ""' - ..020 2x20 020 @1100 rw ~ --- -f--- le f--- f--- De I-« • La ..... -- .. • I ,p)J I .1JJ I 1n I I nn I I I I I ~I 1 lflec l. o 4 o ~ 013 2x4-x3-016 015 ~ 0161SECTION D-D ~N ES: MATCATD-D GHI CHI.I: 1. REINFORCEMENT YIELD STRENGTH: FY=420 MPA. "scALE : 1110 1. CUONG £>0 CHAY COA COT TH!:P fc=420 Mpa. Ti'LI;.: 1/10 2. CONCRETE COVER: C=50 MM. ~ 2. LdP ee TONG ~ ve: c=5D mm ~ CLIENT: 11 PROJECT IMPLEMENTATION CONSULTANT FILE NAMEITtN aMIv£ : SCALEITYLe : STATUSTfNHTR6NG: PROJECTIDIJAN : HANOI PILOT LIGHT METRO LINE Sedian Nhon. Hanci RailwayStation ~ • 21111»11 A.K ~.Meurls ...... a-io E>Au ru: nrvAN THl,fC Hli;:N DI/ AN PIC-TEC-GRR-IHVOJ04-111222-6_l1ADWG - Technical Design Tuv£N SOONG sAT E>0 THI THI -E>li:M TP HA N()I Elofn N~n ·Ga Hil NOi"' """'""' • • "' """"' 2nd aubmilaion of technical dellign A.K 3.MauriB __, SYSTRAS.A DESIGNED BYTHltrK£ : FORMATKHO BAN ve: DATEINGAY: TTTl.El'ftNBANVE: NHUE RIVER CROSSING ii u ,. 01/11Y10 "PDATE> A.K 3.Maurls __, HRB A.K A1 31/01/10 WQT SONG NHUe I 1D """" """'""' A.K ].Meurls __, ~~ 1C """" "PDATE> A.K ~.Meurls __, CHECKEDBYsoAT: This d'awilg must not be eilhlr IDMed, o:ipi!lcl orOlharwiae rep'Ocluoed PIERS-PIERCAP - P152 - REINF -3 / 3.s 18 "'"''" Date Missing A.K ~.Maurls P.Amaud HANOI ME'TROPOUTAN RAIL TRANSPORT PROJECT BOARD G. Maurls In - er h pmrt ar uucl for •nr prupmaWlhoullho prkrwrlllln TRV-MO TRV - P152 - COT TH!=:P - 3 / 3•• BAN·~ AN oU'ONo sAroO THI HA NQI pennllillon ol HRB. ~ H 1A 31/01/10 ,........ A.K 3.Maurls __, PROJECTDIRECTORIGINAeocDIJ AN : CHIEF CESIGNERCll) NHla,lTHl£'TK£ : DR.WING NO.IBANVESO : I3A Mn vii My kh!lng 4JVC ~RI) d,lng - mol h"rlh lh)c, m(ll phln hrly REVISION "'" DESCRIPTION -· ,,.,.,. (Hl'CflE!QI Alain B~chereau kllln ~ mll kh!lng41VC..,Mngf'blngvllnbllncilll HRB. PIC-TEC-GRR-WVO-J04-18222-Bn SO'AElOI ""y NOi DUNG sCrA.ElOI m• ..T ailrtil;Mllil~~ P.Amaud •
  • 64.
    r Total Lengths andWeights No. No. No. Number of members: 1 '" Type No. !bar Total Length hape Bend '" Type No. '"' Total Length ~hape Bend '" ,,,. No. .... Total Length "'" Bend 11ark •nd of "'"' No. (ode Type Dinensions Shape Rev. mark •nd of "~" No. (ode Type Dimensions Shape Rev. mark •nd of neach No. (ode Type Dimensions Shape Rev. Type T Type R size ....1e11b. size ........ size 11enb. ....mm mm mm a mm mm mm a mm mm mm a Total Weight Total Total Weight Total ~ Diameter Length per unit Weight Length per unit Weight 001 032 1 36 36 11700 ,, 1 A=S86 8=11215 011 016 1 BO BO 2750 " 1 A=2391 E :i 021 016 1 20 20 2760 " 1 A=Zl,.GO E :i lml (kg/ml (kg) lml )kg/ml )kg) 6 0 0.222 0.00 IQ 8 0 0.395 0.00 002 031 1 36 36 53BO 00 A•5376 012 010 1 91 91 8850 99 1 A•11100 8-2400 10 0 0.617 0.00 ~ IQ 11 2097 0.888 1861.85 003 031 1 36 36 11700 ,, 1 A:S86 8:11215 013 016 1 14 14 4310 99 1 A:307 8:1118-~2401 14 0 1.110 0.00 ""'"'"""NGTI '"""~NG BINH 16 777 1.580 1227.66 ~ IQ 18 0 1.000 0.00 004 031 1 48 48 moo ,, 1 A=586 8=11215 014 016 1 3 3 45BO 99 1 A~2 B=1118-~Zltll1 ""'" 10 1057 1.470 1610.67 '"""NGTI '"""~NG BINH IQ 11 0 1.9BO 0.00 005 031 1 36 36 6010 15 1 A·1805 B-209 C-4221 ~ 015 016 1 14 14 5790 99 1 A.aG7 8·2500 15 0 3.850 0.00 r1=160 18 0 4.830 0.00 ~ IQ 31 2241 6.310 14140.71 006 031 1 36 36 6950 15 1 A=4lB4 B=SS4 wno 016 016 1 6 6 6060 99 1 A=442 8:2§00 36 0 7.990 0.00 d IQ 40 0 9.860 0.00 001 031 1 11 11 6180 11 1 A=2016 8=2355 C=2016 011 011 1 184 184 5660 99 1 A=2400 8=364 d IQ Type T Type R 008 031 1 18 18 5680 11 1 A:2016 8=1854 (:2016 018 011 1 184 184 4650 99 1 A=357 B:19GO Total Length - Bended : 5978 Total Length - Straight: 194 016 1 40 40 4160 11 1 y 011 1 46 46 4340 99 1 IQ Total Length (m) : 6171 '" A=1155 8=350 C=•2S-~J625 019 A=205 8=19GO MEAN Total Weight - Bended : 18620 l'HUO NGTI -NGB]NH Total Weight - Straight : 1222 010 016 1 10 10 4190 11 1 A•1155 B-485 C••25-•J625 Ii:::d1 020 010 1 40 40 6190 11 1 A-1284 B•tll00-•3700 C.Z316 Ii:::d1 Total Weight (kg} : 19841 ~~NGTI -NGB]NH ~~NGTI '"""~NG BINH Mean Size {mm) : GENERAL WEIGHT kg I 22.8 I I 19841 I..,__-DTP- AruCAllll -DTP- ---DTP- -~ CLIENT: Iii PROJECT IMPLEMENTATION CONSULTANT FILEN.A.MEIrt!N BAN/£: SCALEI1fLE: STATUST~H~G: PROJECTIDIJAN: HANOI PILOT LIGHT METRO LINE Secti111 Nh111 ·Hanoi Railway $tati111 ; CHOE>AuTll: lllVAN THl/C Hli;:N Dl,I' AN PIC-TIDGRR-wvo-Jll4-18223-B_,ZA.DWG - Technical Design TUYl:N EllJONG sATDO THI THIElli:M TP HA. NOi Elofn Nh&i ·Ga Hi N(!i • "" """"' 2nd aibmillaion oftBdlnieal dBllign ~K 3.MalSis '·""""' SYSTRAS.A u " 01/10/10 UPDATED H 3.MalS!s .""""' HRB DESIGNED BYITiii~ ~ : FORMATKHO BAN -1: : DATEINGA.Y : TITlEIID.I BAN/£: NHUE RIVER CROSSING 10 '''"'" "'"'""' H 3.MalS!s .""""' AK A1 30/01/10 VLJQT SONG NHUI;' ~. "'"'" G.MalS!s •.""""' CHECKED BYsoAT:' . 10 UPDATED H This drawil'IQ m.iat not be either lol!lnad, copied crolharwiaa reproduced PIERS-PIERCAP - P152 - REINF - BAR LIST-1/2.~ HANOI METROPOLITAN RAIL TRANSPORT PROJECT BOARD •§ 1B 19/02/10 Data Missing H IG. MalS!s ..""""' G. Maurls hwhala orIn part erumd for anypru-wllhautlhB prbrwrllllln TRV-MO TRV-P152-C0TrHi=P- DANH MVCCOTrHi=P-1 /230/01/10 Frlstl•ua H 3.MalS!s .""""' BAN DIJ AN elJONG sATeO THI HA NQI pmrmlalan d HRB. I~ 1A PROJECT DIRECTORIGIAM tx'Jc DIJAN : """"' DA" """"""' ....,. ·-· '"'"""" CHEF DESIG~ ICHO NHla,I Tiiltl' ~ : Bin vi nlly khOng 6tFqC phOp a~ dl.l'lg dllOI ~ hlrti thil'c, m01 phOn hey DRAWING ND.I BAN VE SO: I 2An "''"' 'DA' N01DLNs(rA£lOI """ "" Clil~ll)IHTKJ: Alain B6chereau P.Amaud toAn bO. mA khOng 6tFqC 811' o.lrig t bl.11'41 "*'bin C)9 HRB. PIC-TEC-GRR-WVO-J04-18223-B
  • 65.
    BENDING DIAMETERS Imm) Diameters 'B 10 12 14 16 18 20 22 25 28 32 " 40 Lengths of standard hooks Imm) Hooks !Type 1) " 48 60 72 " " 108 120 132 150 224 256 288 320 IDiameters I 6 B 10 12 14 I 16 18 20 22 2s I 2s 32 " 40 D fr;imes (Type 21 24 32 40 48 " 64 108 120 132 150 224 256 288 320 Hooks 0 0 0 0 0 0 0 0 0 0 0 0 0 0 'l~~~~a%e 72 " 120 144 168 192 216 240 "' 300 336 384 432 4BO(Type 1) R Frames @_ D 0 0 0 0 0 0 0 0 0 0 0 0 0 0 Framn 72 " 120 144 168 192 216 240 264 300 336 384 432 4BO(Type 2) {Twne 2) 'l~~~ea%e 0 0 0 0 0 0 0 0 0 0 0 0 0 0 R Frames {Tvne 2) 0 0 0 0 0 0 0 0 0 0 0 0 0 0 BAR DIMENSIONS - THE DIMENSIONS ARE GIVEN ON THE OUTSIDE FIBER OF THE REBAR ISEE BELDWI nchora~e " 48 60 72 84 " 108 120 132 150 168 192 216 "'(Type 1 ~ D Frames- THE TOTAL LENGTHS ARE CALCULATED ON THE BASIS OF THE CENTERLINE. " 48 60 72 84 " 108 120 132 150 168 192 216 "'(ISO 3766:2004. - METHOD Bl !Tvoe 2) 'l~~~ea%e 0 0 0 0 0 0 0 0 0 0 0 0 0 0 - THE BENDING ANGLES ARE GIVEN IN DEGREES. R Framn 0 0 0 0 0 0 0 0 0 0 0 0 0 0 11.y E !hoe 2) ., nchora%e 65 65 65 65 65 65 72 BO BB 100 112 128 144 160 ;t- (Type 1 D Frames !Tvoe 2) 65 65 65 65 65 65 72 BO BB 100 112 128 144 160 ..____ 'l~~~ea%e 0 0 0 0 0 0 0 0 0 0 0 0 0 0 R Framn !hoe 2) 0 0 0 0 0 0 0 0 0 0 0 0 0 0 0 "' •.; - ~ c ArwCAD9 -OTP- ~-OTP· CLIENT: Iii PROJECT IMPLEMENTATION CONSULTANT FILEN.A.MEIrt!N BAN~: SCALEI1fLE: STATUST~H~G: PROJECTIDIJAN: HANOI PILOT LIGHT METRO LINE Secti111 Nh111 ·Hanoi Railway Statioo ; CHOE>AuTll: lllVAN THl/C Hli;:N Dl,I' AN PIC-TIDGRR-wvo-Jll4-18224-B_.2A.DWG - Technical Design TUYl:N EllJONG sATDO THI THIElli:M TP HA. NOi Elofn Nh&i ·Ga Hi N(!i • "" 3DIO<l11 2nd aibmillaion oftBdlnieal dBllign ~K 3.MalSis '·""""' SYSTRAS.A u " 01/10/10 """"'"' H 3.MalS!s .""""' HRB DESIGNED BYIn11a ~ : FORMATKHO BAN -1: : DATEINGA.Y : TITlEID.I BAN/£: NHUE RIVER CROSSING 10 '''"'" """"'"' H 3.MalS!s .""""' AK A1 31/01/10 VLJQT SONG NHUI;' ~. "'"'" G.MalS!s •.""""' CHECKED BYsoAT:' . 1C UPDATED H This drawil'IQ m.iat not be either lol!lnad, copied crolharwiaa reproduced PIERS-PIERCAP - P152 - REINF - BAR LIST-2 / 2.~ HANOI METROPOLITAN RAIL TRANSPORT PROJECT BOARD •§ 1B 19/02/10 Data Missing H IG. MalS!s ..""""' G. Maurls h whala or In part er umd for any pru-wllhautlhB prbrwrflllln TRU-MO TRIJ - P152 -COT THi=P- DANH MIJC COT THi:P - 21231/01/10 Frlstl•ua H 3.MalS!s .""""' BAN DIJ AN elJONG sATeO THI HA NQI pmrmlalan d HRB. I~ 1A PROJECT DIRECTORIGIAM tx'Jc DIJAN : """"' ,.,, """"""' ....,. .,,.,. '"'"""" CHEF DESIG~ ICHO NHla,I THltl' ~ : 1Wri vi nlly khOng 6tFqC phOp a~ dl.l'lg dllOI ~ hlrti thil'c, m01 phOn hey DRAWING NO.BAN VE SO: I2An "''"' "'" N01DLNs(rA£lOI """ "" Clil~ll)IHTKJ: Alain B6chereau P.Amaud toAn bO. mA khOng 6tFqC 811' o.lrig t blil'l(I "*'bin C)9 HRB. PIC-TEC-GRR-WVO-J04-18224-B
  • 66.
    ~ ~ '' I!! !i! ~I:! ut iw .!: F % !I $i !;l 8 ~ uii: B I ~ ll002 032 I I r ~ 1 DETAIL A ,_ ·- V cHITIETA -knJ I I I I v 21 I I I I 032 ! 11 I 1 l001 ' I I I II l I I I l 003 032 I ' I I I L - - - _J £1~ ,~ ,~ ..; c:::::::J 017 012 @200 '· l004 2x2•12-D32 ~ ' ~~ ,i.: ,~ ..; '· c:::::::J 017 012 @300 .w:: ~ ,, ''" ..; c:::::::J 017 012 @200 '· ---- ------ ---- - - - - LJ 04ld04 007 12-032 _._ ..... ,__._ ~ Le: $SECTION A-A MAT CATA-A SCALE: 1/50 ti' u;: 11so o----+---+---------------_.____....__ __...__ __. Q.IENT: o----+---+---------------_.____....__ __...__ __. CHOflAuru: 3" 21/ 11r11 Updatlld A.K 2A 30KM/11 2nd •ubmll1lon oflllchnlcal daolgn A. K 10 D1/ 11r!D Updatad A.K 1C ~B/1D A.K - v 012 018 a@200 012 019 a@200 020 012 0@100 ----7012 018 a@300 020 012 0@300 012 @a@300 012 018 a@200 012 019 0,-----@200 020 r.:2)n@100 '912 l _,,C: HRB 0 ~,,.. 0 ~,,.. Updatad 18 2Ml&'ID UPDATED A.K HANOI METROPOLITAN RAIL TRANSPORT PROJECT BOARD 1A 31m1/1D Fl..tlla» A.Kt----+---+---------------_....--------11------l BAN DI/AN llWNG IA.TllOTHI llANQI REVISION DATE SLrAOOI Nal.Y DESCRIPTION NQI DUNGWAfJOI IHIHl!BI' HIM! CllllClllBI' IOI.! 80,,.. r:::: :ii ~ 8 ~ •PROJECT IMPLEMENTATIONCONSULTANT 11 VAN THl,IC HleN DI,/ AN SYSTRAS.A PROJECTDIRECTOR GIAMaocDI/AN: Alain B~cheraau 012 @300 D 0121--=02=0___>+----< @300 1. . .~. . . . .--~~ FILE NAA1ElTtNBAN/£: DESIGNED BYTH1"1K£ : A. K CHECKED BYSlll.T: G. Maur1s CHIEF~IGNERCll) NHleMlll1£rKe: P. Amaud 012 4SECTION B-8 MAT CAT B-B SCALE TYLE: FORMATKHO BAN VE: A1 SCALE : 1150 ri' LS: 1/50 STAlUS TfNH~G : Teclmical Design DAlENGAY: 31/01/10 Thil <Rwi'IDmUll:notbe eithlrlOlrled,<q>ied«otl'lll'Wile NP'Odiacl ln wtdea h P11rt orul8dfor•nr prupme wllhoul:.. prlor'Mltsl parmlllllonot HRB. ......My_..,.,._.......1111 ..... ..,.. .... _m(llpMnt.y ....~ ...- .........~t~ '"""'" "'" """· D NOTES : - - - - - - - - - - - - - -- GHICHIJ: 1. REINFORCEMENT YIELD STRENGTH: FY=420 MPA. 1. CllONG DO CHAY GOACO'r THEP fc=420 Mpa. 2. CONCRETE COVER: C=50 MM. 2. LdP BE TONG BAf> VS c=5D mm PROJECT CVAN: HANOI PILOTLIGHT METRO LINE SediDn Nhon•HantiRailwayS1atial TIJY£NflOONG sATElO THITHIfll~M TPHA NQI Batn N~n · GaHi NOi Tm.E TtNBANVE: NHUE RIVER CROSSING VU'QT SONG NHUI;: PIERS-PIERCAP - P153 - REINF - 1/3 TRl,1-MO TRl,I • P153 - COT THIOP • 1/ 3 DRAl'l1NGNO. BANV£SO: PIC-TEC-GRR-WVO-J04-18230-B 3A
  • 67.
    ~ ~ 2..I:! t i ~ii: ]'~ '~ /) I/ ll "" ""~ ?---~::, I ~ I~~ I "" ~~ " ' UL 013 014 . LJ 020 020 " 005 006 032 . ' 005 006 032 I!! ~ u 3" 21111r11 2A 30KM/11 10 D1111r10 w .!: 1C ~8110 1- - - -·-·-·-T. - . . . . . . . . . . - - - . . . . - . - - - - - - - - - - - - - I T - - - ' ' I TI ~ - - - - ~ II J "" 11 I ' Ill -y I I II II II - - ~ - - - - - - - - - · - - - · - - - · - - - · - - - · - DETAIL B CHI Tl~T B SCALE: 1/10 TYLS: 1110 HRB ~ ~ - 17. · - ~ . . I II .--l11 II I I ll II I J I I I I II II II II I 016 · - - III r-il I /f ~h ' ~ "JI II J T -vT77 II .--l11 II D16 013 014 li II I I I 016 009 010 II II II 11 032 005 006 / II I 032 oos 006 I 011 I PROJECT IMPLEMENTATION CONSULTANT Tl1 VAN THl,IC HleNDI,/AN SYSTRAS.A F % !I $i 18 2Ml&'ID !;l 8 UPDATED A.K .Amaud HANOI METROPOLITAN RAIL TRANSPORT PROJECT BOARD t--+=:-::--+-=F1ro1...,..,...-..-------------+,.:..:.K.:_---Eo..:::=-+..:..:Amau=d=---1 BAN DI/AN allONG sA.raO THI HA NQI u 1A 31m1110 REVISION DATE B SLrAOOI Nal.Y DESCRIPTION NQI DUNGWAfJOI IHIHl!BI' CllllClllBI' l>&IJ"lllllill HIM! IOI.! otl1t11;M1111!rl! PROJECTDIRECTOR IGIAMaocDI/AN: Alain B~cheraau ~I- -· - ·- - - ~ - - - - - - I I i I II <1;1 !;/' 1/ ,,!;' 1J;/ J <) I< J <) <) I416-016 015 6-016 ;:~I 005 006 032 r4 v v LJ 020 020 016 011 009 016 016 009 016 010 - - - - - · - - - - - - - - - - - - · - - - · - - - · - - - · - - - · - - - · - - - · - - FILE NAA1ElTtN e,l,i/£: DESIGNED BYTH1£TK£ : A. K CHECKED BYSlll.T: G. Maur1s CHIEF~IGNERCll) NHleMlll1£rK£: P. Amaud DETAIL A CHI Tl~TA SCALE: 1/10 TYLS: 1110 NOTES : --------------~ GHI CHIJ: 1. REINFORCEMENT YIELD STRENGTH: FY=420 MPA. 1. CllONG DO CHAY COACOT THEP fc=420 Mpa. 2. CONCRETE COVER: C=50 MM. 2. LdPBE TONG BIID VS c=50 mm SCALEITYLE: STAlUS TfNH~G : Teclmical Design PROJECTIDVAN: HANOI PILOTLIGHT METRO LINE SediDn Nhon•HantiRailwayS1atial FORMATKHO BAN VE: A1 DAlEINGAY: 31/01/10 Thil <Rwi'IDmUll:notbe eithlrlOlrled,<q>ied«otl'lll'Wile NP'Odiacl ln wtdea h P11rt orul8dfor •nr prupmewllhoul:.. prlor'Mltsl parmlllllonot HRB. ......My_..,.,._.......ng ..... ..,.. .... _m(llpMnt.y .... ~ ... - ......... ~t~ YGnb6n cOo HRB. TllY£NflOONG sAT00llilTHIfll~M TPHA NQI BatnN~n. Ga Hi NOi Tm.E ~NBANVE : NHUE RIVER CROSSING VU'QT SONG NHUI;: PIERS-PIERCAP - P153 - REINF - 2/ 3 TRV-MO TRV • P153 ·COT THIOP • 2 / 3 DRAl'l1NGNO.IBANVESO: PIC-TEC-GRR-WVO-J04-18231-B 3A
  • 68.
    ~ 94-020 -@D ~ ll 001 111100/300 Dl2 II I I /F .t=~ " ~' ;=;= "" "" ~l003 Dl2 ~" Ill Ill Ill ~~ ·111 ~ F----8~ ~ "' ~ u ~1-k u ~ 4x50-D12 018 ~ ~ I= I ['Oi1' 4x50-D12 50-012 019 I>;;.:;/ 005 021 ~ ll:01 :l ~ll;°' 021 005 ALTERNATE Ill THAY THI:. 006 006 ~g c::: --, ~lit 111 =-::--- 4x10-D16 rn 0 D D rn 009 D .. D @200 N ~" / . ~ ~ -eu 'l 'I '1111 I u rtf4f ~I003 D32 • I - - 10xB-D16 I ,_ ,..... 011 "" ;= != ~ 111275•200~ le~ ~ pe I-« •~ ll 001 Dl2 I $ 005 006 Dl2 ,_ .._ - - Dl2 aas 006 ; SECTION C-C - -- --., -MATCATC-C - • c--0 SCALE: 1/10 c-- E» -« •Ti' LI;.: 1/10 - ...... -- .. I - - - -010 10-016 @200 • E» -ec • ~&- I-« •• Ole 014 2x3-D16 - ...... -- ..ALTERNATE Tl-IAYTHe - -D - - • E» I-« •~ r-- c-- 'l - ...... - ..020 2x20 020 @100 rw -- --. -r-- le r-- r-- pe I-« • La .... -- .. • I _,jj I .1JI I 1n I .m, I I I I n1 I~ l. o 4 o ~ 013 2x4-x3-D16 015 ~ 016 ~SECTION D-D ~NOTES: MATCATD-D GHI CHI.I: 1. REINFORCEMENT YIELD STRENGTH: FY=420 MPA. SCALE: 1/10 1. CUONG £>0 CHAY COA COT TH!:P fc=420 Mpa. Ti'LI;.: 1/10 2. CONCRETE COVER: C=50 MM. ~ 2. LdP ee TONG ~ ve: c=5D mm ~ CLIENT: 11 PROJECT IMPLEMENTATION CONSULTANT FILE NAMEITtN aMIv£ : SCALEITYLe : STATUSTfNHTR6NG: PROJECTIDIJAN : HANOI PILOT LIGHT METRO LINE Sedian Nhon. Hanci RailwayStation ; • 21111»11 A.K ~.Meurls ...... a-io E>Au ru: nrvAN THl,fC Hli;:N DI/ AN PIC-TEC-GRR-IHVOJ04-111232-6_l1ADWG - Technical Design Tuv£N SOONG sAT E>0 THI THI -E>li:M TP HA N()I Elofn N~n ·Ga Hil NOi3A """'""' • • "' """"' 2nd aubmilaion of technical dellign A.K 3.Maurill __, SYSTRAS.A DESIGNED BYTHltrK£ : FORMATKHO BAN ve: DATEINGAY: TTTl.El'ftNBANVE: NHUE RIVER CROSSING ii u ,. 01/11Y10 """'""' A.K 3.Maurls __, HRB A.K A1 31/01/10 WQT SONG NHUe I 1D """" """'""' A.K ].Maurls __, ~~ 1C """" """"'"" A.K ~.Maurls __, CHECKEDBYsoAT: Thill d'awilg must not be eilhlr IDMed, o:ipiecl orOlharwiae rep'Ocluoed PIERS-PIERCAP - P153 - REINF -3 / 3.s ,. 1""2110 Date Missing A.K ~.Maurls P.Amaud HANOI ME'TROPOUTAN RAIL TRANSPORT PROJECT BOARD G. Maurls In - ot h pmrt ot uucl for •nr prupmewthoullho prkrwrlllln lRIJ-MO lRIJ - P153- COT TH!=:P - 3 / 3•• BAN·~ AN oU'ONo sAroO THI HA NQI pmnnllillon ol HRB. ~ H " 31/01/10 ,....... A.K 3.Maurls __, PROJECTDIRECTORIGINAeocDIJ AN : CHIEF CESIGNERCll) NHla,lTHl£'TK£ : DR.WING NO.IBANVESO : I3A Mn vii My kh!lng 4JVC ~RI) d,lng - mol hhh lh)c, m(ll phln hrly REVISION "" DESCRIPTION -· ..,.,. (Hl'CflE!QI Alain B~chereau kllln ~ mll kh!lng41VC..,Mngf'blngvllnbllncilll HRB. PIC-TEC-GRR-WVO-J04-18232-Bn SO'AElOI ""y NOi DUNG sO'AElOi m• ..T ailrtil;llillil~~ P.Amaud •
  • 69.
    ' Total Lengths andWeights ,. ~. I ti I -~ I Number af members: 1 .. 1•• lohl ~. •• .. 1,,. .. rn• ~ee .. ~· 1,. No. Total "'" ...... •• .·::. "' ~""" ,..1,,. ...... '"' .... E•k •• .:!. ,. ""''" Type llnen!ilons ... Rew. ... ...:!.~ ... ..''"'""'' 1•• DEslllll!i .... .... Type T Type R '"' -- "" •• -mm mm mm - mm mm mm mm mm mm - - Total Weight Total Total Weight Total b Diameter Lenth per unit Weight len~th per unit Weight '" OlZ , 36 36 11701 11 , Ao51fi Bofl215 "' 016 , 80 80 2750 " , -· t::::::::::::l '" 016 , 20 20 2760 99 , ~· t::::::::::::l Im (kg/m) (kg) Im lkg/m) {kg) ----.---- ' 0.222 0.00 IQ - c::;;::::::J ' ' 0.395 0.00 o~ OlZ , 36 36 6160 " hOO '" 020 , 94 94 BBSO " 2 A-1'IO l-24GD - 10 ' 0.611 0.00 - b IQ + 2279 0.888 2023.75 '" OlZ , 36 36 1170C 11 , Ao5H B.fl2!i "' 016 , 24 24 4310 " 2 A-311 llol~Z411 ' 1.210 0,00 - - 111 1.58016 1227.66 '" .., IQ - b ,, ' 2.000 0.00 "' OlZ , 48 48 11701 11 , A=Slli B=TIZ& "' 016 , ' ' 4580 " 2 A:ltl.Z B:'lfll-o.2U1 - - ___E_ 1084 2.470 2676.25 '" .., IQ 22 ' 2.980 0.00 ~ - ·~ OlZ , 36 36 6020 1S , A-llOS MMC-WI "' 016 , 24 24 5790 " 2 A-301 WSIO 25 ' 3.850 0.00 ~·· - " ' 4.830 0.00 ~ IQ ----,,--- 2269 6.310 14317.89 ON "' , 36 36 6950 1S , AoU14 l.S!4 C.znl "' 016 , ' ' 6060 " 2 A-44Z B-2501 - " ' 7.990 0.00 - d IQ 40 ' 9.860 0.00 - 007 "' , 12 12 6180 21 , AoZOli llaB55 Co201fi ., 012 , 200 200 5660 " , __ d IQ Type T Type R ... "' , " ,, 5680 21 , AoZOli llo1l5l> CaZ01i •• 012 , 200 200 4650 " 2 Aol51 '""" Total Length - Bended' 6187 Total Length - Straight : 222 016 , 40 40 4160 21 2 A-1155 BJSI C.ms-31125 y 012 , so 5(1 434(1 " 2 Wl!i Bo1"t IQ Total Length [m): 6409 o" "'"w Total Weight - Bended: 18847 ~· ~G ""' lUNGB]NH y y Total Weight - Straight' 1399 "' 016 , 10 10 429(1 21 2 A-1155 11-415 c.11125-3625 ~· 020 , 40 40 6290 21 2 Aoa.r. B-fill-JllO c.2311i Total Weight [kg!' 20246 "w -~· ~G' ""' lUNGBlNH '" .., Mean Size (mm) : GENERAL WEIGHT hg I 22.6 I I 20246 I---OTP- ---OTP- --OTP- -- CLIENT: Iii PROJECT IMPLEMENTATION CONSULTANT FILEN.A.MEIrt!N BAN/£: SCALEI1fLE: STATUST~H~G: PROJECTIDIJAN: HANOI PILOT LIGHT METRO LINE Secti111 Nh111- Hanoi Railway $tati111 ; CHOE>AuTll: lllVAN THl/C Hli;:N Dl,I' AN PIC-TIDGRR-wvo-J04-18233-B_,2A.DWG - Technical Design TUYl:N EllJONG sATDO THI THIElli:M TP HA. NOi Elofn Nh&i- Ga Hi N(!i • "" 3ll/O<l11 2nd aibmillaion oftadmieal dBllign ~K 3.MalSis """""' SYSTRAS.A u " 01/10/10 """""" H 3.MalS!s ·""""' HRB DESIGNED BYIn11aKi: : FORMATKHO BAN -1: : DATEI NGA,y : TITlEID.I BAN/£: NHUE RIVER CROSSING 1D '''"'" """""" H 3. MaLDI ·""""' AK A1 31/01/10 VLJQT SONG NHUI;' ~. "'"'" G. MaLDI P.AmoOO CHECKED BYsoAT:' . 1C UPDATED H This drawina m.iat not be either lol!lnad. copied crolharwiaa reproduced PIERS-PIERCAP - P153 - REINF - BAR LIST-1/2.~ HANOI METROPOLITAN RAIL TRANSPORT PROJECT BOARD •§ ,. 19/02/10 Data Missing H IG. MalS!s "·""""' G. Maurls h whala or In part er umd for any pru-wffhaultt. prbrwrttllln TRU-MO TRIJ - P153 -COT THi=P- DANH MIJC COT THi:P -1 /231/01/10 Frlstl•ua H 3.MalS!s ·""""' BAN DIJ AN elJONG sATeO THI HA NQI pmrmlalan d HRB. I~ 1A PROJECT DIRECTORI GIAM tx'Jc DIJAN : """"' """ "'"""""' ....,. ...... '"'"""" CHEF DESIG~ I CHO NHla,I Tiiltl" ~ : Bin vi nlly khOng 6tFqC phOp a~ dl.l'lg dllOI ~ hlrti lhil'c, m01 phOn hey DRAWING NO.BAN VE SO: I2An "''"' "'" NOIDLNsO'AElOI """ "" Clil~ll)IHTKJ: Alain B6chereau P.Amaud toAn bO. mA khOng 6tFqC 811' o.lrig t bl.11'41 "*'bin C)9 HRB. PIC-TEC-GRR-WVO-J04-18233-B
  • 70.
    ' BENDING DIAMETERS !mm! Diameters '• 10 ,, " • " " 22 ~ 28 ll " " Lengths of standard hooks Imm! ,..... " " .. n " K 1H •• "' .."' '" "' '"!T1pa 1l Dlnetlr• " ' 10 ,, " • " n 22 " " 32 I 3& ..• r:fw'n~S IT '" " n .. .. " " 1H •• "' ..m '" "' "' """' • • • • • • • • • • • • • • ~l! " " ,,, 144 "' 122 "' '" "' '" "' "' '" ... ' (Typa 11 •f!a_lllH • • • • • • • • • • • • • • @_ ,,_ " " ,,, 144 1" 122 "' '" "' '" "' "' '" '"IT • ·-·=1! • • • • • • • • • • • • • • ' ,,_ • • • • • • • • • • • • • • ·-·BAR DIMENSIONS - THE DIMENSIONS ARE GIVEN ON THE OUTSIDE FIBER OF THE REBAR !SEE BELOW! r=.11 " " .. n .. • 1.. "' "' .... "' ..... I~ •- THE TOTAL LENGTHS ARE CALCULATED ON THE BASIS OF THE CENTERLINE. ,,_ " " .. n " • "' "' "' .... "' .."'·-·!ISO 3766:2004 - METHOD B) ~l! • • • • • • • • • • • • • •- THE BENDING ANGLES ARE GIVEN IN DEGREES. ' ,,_ • • • • • • • • • • • • • • I E ·-·;t-. ~-~· " " " " " " n M A .. ,. "' "' .. Y'{ ,,_ " " " " " " " M A .. ,. .."' ..IT-• - =lf • • • • • • • • • • • • • • ' ,,_ IT-• • • • • • • • • • • • • • • J ,J(__..,_ __..,_ ~ ~ CLIENT: Iii PROJECT IMPLEMENTATION CONSULTANT FILEN.A.MEIrt!N BAN~: SCALEI1fLE: STATUST~H~G: PROJECTIDIJAN: HANOI PILOT LIGHT METRO LINE Secti111 Nh111 ·Hanoi Railway Statioo i ; CHOE>AuTll: lllVAN THl/C Hli;:N Dl,I' AN PIC-TIDGRR-wvo-Jll4-18234-B_,ZA.DWG - Technical Design TUYl:N EllJONG sATDO THI THIElli:M TP HA. NOi Elofn Nh&i ·Ga Hi N(!i • "" 31l/0<111 2nd aibmillaion oftBdlnieal dBllign ~K 3.MalSis '·""""" SYSTRAS.A DESIGNED BYIn11a ~ : FORMATKHO BAN -1: : DATEINGA.Y : TITlEID.I BAN/£: NHUE RIVER CROSSING ii u " 01/10/10 """""" H 3.MalS!s ·""""" HRB AK A1 31/01/10 VLJQT SONG NHUI;' ~ 10 '''"'" """""" H 3.MalS!s ·"""""~. "'"'" UPDATED H ~.MalS!s "·""""" CHECKED BYsoAT: This drawil'IQ m.iat not be either lol!lnad, copied crolharwiaa reproduced PIERS-PIERCAP - P153 - REINF - BAR LIST-2 / 2' . 1C HANOI METROPOLITAN RAIL TRANSPORT PROJECT BOARD.~ " 19/02/10 Data Missing H jG. MalS!s P.AmoOO G. Maurls h whala or In part er umd for any pru-wllhautlhB prbrwrflllln TRU-MO TRIJ - P153 -COT THi=P- DANH MIJC COT THi:P - 212•§ BAN DIJ AN elJONG sATeO THI HA NQI pmrmlalan d HRB. ~ I~ 1A 31/01/10 Frlstl•ua H 3.MalS!s ·""""" PROJECT DIRECTORIGIAM tx'Jc DIJAN : CHEF DESIG~ ICHO NHla,I THltl' ~ : DRAWING NO. BAN VE SO: I2A 1Wri vi nlly khOng 6tFqC phOp a~ dl.l'lg dllOI ~ hlrti thil'c, m01 phOn hey """"' """' "'"""'"' ....,. ·-· ....... Alain B6chereau P.Amaud toAn bO. mA khOng 6tFqC 811' o.lrig t blil'l(I "*'bin C)9 HRB. PIC-TEC-GRR-WVO-J04-18234-Bn "''"' "'" N01DLNs(rA£lOI """ "" Clil~ll)IHTKJ: •
  • 71.
    ~ ~ ; ••• uii I~~ .s •• ~ H •n v- B 7-- 0 012 33-020 (Dl2SOmm 0 011 43-020 (Dl70mm ~ 0 al VIEW 1-1 GQC NHiN 1-1 SCALE: 1/50 rt LI~.: 1/50 --v B 3-032 01B JIB~1J . 4-032 2er,02B [2 23-032 001 j 23-032 002 l t---+--+---------------+---+---1----1 ~~ru: "' 21/1B'11 ""'"'"' A.K .MauriB . Joing "' """11 2nd submission of lechnlcal daalgn A.K 1D D1/11»10 ""'"'"' A.K v- B 7-- "'i!l "' 0 012 8 0 011 ~ HRB + ~ 3 VIEW2-2 Gc'.>C NHIN 2-2 SCALE: 1/50 T'?LS: 1/50 PROJECT IMPLEMENTATION CONSULTANT nrvAN THl,fC Hli;:N DI/ AN SYSTRAS.A 1C """" ""'"'"' A.K 18 """" UPDATE> A.K ·-'l-~-<'=~+==~------------+=---1==~1-.~-=,"--' HANOI ME'TROPOUTAN RAIL TRANSPORT PROJECT BOARD 1A 31/01/10 Flllll lssua REVISION "'" DESCRIPTION SO'AElOI ""y NOi DUNG sCrA.ElOI A.K -·m• ..,.,...T PROJECTDIRECTORIGINAeocDIJ AN : Alain B~chereau .Arnaud BAN DI/AN DU'bNG sA.TE0THI HANQI (Hl'CflE!QI ailrtil;Mllil~~ --v B 4-032 "J1C~01cl 1 J · 6-032 02 r 2cr,[2 001 002 8 ~ FILE NAMEITtN aMIv£ : PIC-TEC-GRR-IHVOJ04-'IUll>6_llADWG DESIGNED BYTHltrK£ : A.K CHECKEDBYsoAT: G. Maurls CHIEF CESIGNERCll) NHla,lTHl£'TK£ : P.Amaud "'i!l "' SCALEITYLe : FORMATKHO BAN ve: A1 v- t 7- 7-- 0 012 0 011 STATUSTfNHTR6NG: Technical Design DATEINGAY: 31/01/10 This d'awilg must not be eilhlr IDMed, o:ipi!lcl orOlharwiae rep'Ocluoed In - er h pmrt ar uucl for •nr prupmaWlhoullho prkrwrlllln pennllillon ol HRB. 017 l5-032 1111300 4-032 4-032 ~ 12-032 SECTION 3-3 M.;T CAT 3-3 SCALE: 1/50 Ti'LI;.: 1/50 9-032 ~ --v 01[ l r 12~ [2 ~ 1'°I[1 I I'° ~1] 12AI [2 01B l 02B r "'i!l "' 001 002 8 ~ NOTES:--------------~ GHI CHI.I: 1. REINFORCEMENT YIELD STRENGTH: FY=420 MPA. 1. CUONG £>0 CHAY COA COT TH!:P fc=420 Mpa. 2. CONCRETE COVER: C=50 MM. 2. LdP ee TONG ~ ve: c=so mm PROJECTID1JAN : HANOI PILOT LIGHT METRO LINE Sedian Nhon •Hanci RailwayStation Tuv£N SOONG sAT E>0 THI THI -E>li:M TP HA N()I Elofn N~n ·Ga Hil NOi mLEl~NBANt, NHUE RIVER CROSSING WQT SONG NHUe DR.WING NO.IBAN~ SO : PIERS - P154 - REINF lRIJ - P154 - COT THl:P PIC-TEC-GRR-WVO-J04-18240-B 3A
  • 72.
    ~ ~ 2 •;; •ii uI~~ .s •• ~H • n ----===--===--==-=--~ r I I I ~J I I I I t L_ 01[ ~------------ ~ ---------------------- _ _ _SECTION A-A - - - MATCATA-A "' 21/1B'11 "' """11 1D D1/11»10 1C """" ""'"'"'2nd submission of lechnlcal daalgn ""'"'"' ""'"'"' SCALE: 1/10 TY Le: 1/10 A.K A.K A.K A.K 0020 012 CLIENT: a-io E>Au ru: .MauriB . Joing .""'"' ·""""' ·""""' HRB ·""""' HANOI ME'TROPOUTAN RAIL TRANSPORT PROJECT BOARD18 """"1A 31/01/10 UPDATE> A.K ·""""'Flllll lssua A.K .""'"' ·""""' I---+=-+.,,--------------+=---"'="-"'-='"---' BAN DI/AN DU'bNG sA.TE0THI HANQI REVISION "'" DESCRIPTION -· """'" (Hl'CflE!QI SO'AElOI ""y NOi DUNG sCrA.ElOI m• ..T ailrtil;Mllil~~ 0020 012 SECTION C-C MATCATC-C SCALE: 1/10 Ti'Le:: 1/10 SECTION D-D MATCATD-D SCALE: 1/10 Ti'Le:: 1/10 PROJECT IMPLEMENTATION CONSULTANT nrvAN THl,fC Hli;:N DI/ AN SYSTRAS.A PROJECTDIRECTORIGINAeocDIJ AN : Alain B~chereau FILE NAMEITtN aMIv£ : PIC-TEC-GRR-IHVOJGl-111241-B_llADWG DESIGNED BYTHltrK£ : A.K CHECKEDBYsoAT: G. Maurls CHIEF CESIGNERCll) NHla,lTHl£'TKe : P.Amaud SCALEITYLe : FORMATKHO BAN ve: A1 0110 SECTION E-E MATCATE-E SCALE: 1/10 TYLS: 1110 002 l SECTION F-F MAT CAT F-F STATUSTfNHTR6NG: Technical Design DATEINGAY: 31/01/10 SCALE: 1/10 TY Le: 1/10 NOTES: _ _'-..::::::::::::::1________ GHI CHI.I: 1. REINFORCEMENTYIELO STRENGTH: FY=420 MPA. 1. CUONG £>0 CHAY COA COT TH!:P fc=420 Mpa. 2. CONCRETE COVER: C=50 MM. 2. LdP ee TONG ~ ve: c=5D mm PROJECTID1JAN : HANOI PILOT LIGHT METRO LINE Sedian Nhon •Hanci RailwayStation Tuv£N SOONG sAT E>0 THI THI -E>li:M TP HA N()I Elofn N~n. Ga Hil NOi mLEl~NBANt, NHUE RIVER CROSSING WQT SONG NHUe This d'awilg must not be silhlr IDMed, o:ipi!lcl orOlharwiae rep'Ocluoed In - er h pmrt ar uucl for any prupmaWlhoullho prkrwrlllln pennllillon ol HRB. PIERS - P154 - REINF TRIJ - P154 - COT THl:P Mn vii My kh!lng 4JVC ~RI) d,lng - mol h"rlh lh)c, m(ll phln hrly kllln ~ mll kh!lng41VC..,Mngf'blngvllnbllncilll HRB. DR.WING NO.IBANVESO : PIC-TEC-GRR-WVO-J04-18241-B 3A
  • 73.
    c c Total Lengthsand Weights No. 1~fNboa'r Total IL th No. lofNbo,"r Number of members 1 Boe Type phape Bend Boe Type Total Length phape Bend mark ecd of m'°ch No. eng Code Type D1mens1ons Shope R'" mark ;od of 1n ~ach No Code Type D1mens1ons Shope R'" Type T Type R BENDING DIAMETERS (mm) size memb memb size memb memb mm mm mm a mm mm mm a D1<imeters 6 8 10 12 14 16 18 20 22 25 28 32 36 40 Total Weight Total Total Weight Total ~ ~ Diamet-er Length per unit Weight Length per unit Weight Hooks 36 48 60 12 84 96 108 120 132 150 224 256 288 320 001 031 1 13 13 11700 11 1 A=11215 B=5B6 011 010 1 43 43 6690 99 1 A=B40 R=B27 lml (kg/ml [kg) lml (kg/ml (kg) D IType 11 Frames L•p =1xB40 6 0 0.222 0 00 !Type 21 24 32 40 48 56 64 108 120 132 150 224 256 288 320 ~ 8 0 0 395 0.00 Hooks 0 0 0 0 0 0 0 0 0 0 0 0 0 0 01A 031 1 11 11 2150 00 A=2147 i:::::;::::::J 012 010 1 33 33 6690 99 1 A=B40 R=B2'J R (Type 1) 10 0 0 617 0.00 Frame> 0 0 0 0 0 0 0 0 0 0 0 0 0 0Lop.=1'840 [Type 21 ~ ~ 11 0 D888 0 00 01B 031 1 3 3 3590 11 1 A=1419 B=22H 011 031 1 s s 4630 11 1 A=1035 B=3700 14 0 1.210 0.00 16 0 1.580 0.00 ~ 18 0 2.000 0 00 BAR DIMENSIONS 01[ 031 1 4 4 5190 11 1 A=1419 B=36B 10 SOB 2.4 70 1255.85 - THE DIMENSIONS ARE GIVEN ON THE OUTSIDE FIBER OF THE REBAR !SEE BELOW] 11 0 2 980 0.00 - THE TOTAL LENGTHS ARE CALCULATED ON THE BASIS OF THE CENTERLINE 010 031 1 4 4 3750 00 A=3747 i:::::;::::::J 15 0 3 850 0.00 llSO 3766·2004 - METHOD Bl 18 0 4.830 0.00 - THE BENDING ANGLES ARE GIVEN IN DEGREES ~ 31 713 6 310 4501 24 r'l&i 002 031 1 13 13 9820 11 1 A=9333 B=586 36 0 7 990 0.00 40 0 9.860 0.00 02A 031 1 9 9 4070 00 A=4067 i:::::;::::::J ~ Type T Type R 02B 031 1 4 4 5400 11 1 A=1419 B=4086 Total Length - Bended: 1122 Total Length - Straight: 100 a ~ Total Length lml: 1222 02[ 031 1 6 6 7000 11 1 A=1418 B=5686 "'Total Weight - Bended 5126 Total Weight- - St-raight- · 631 020 031 1 4 4 5670 00 A=5667 i:::::;::::::J Total Weight (kg): 5757 •J Mean Size [mml GENERAL WEIGHT kg YII 27.6 I I 5757 I AcmoCAD•-DTP- Acm•CAD•-DTP- Acm•[AD• Dfe Acm•tAD•-OTP- CLIENT: 11 PROJECT IMPLEMENTATION CONSULTANT FILE NAMEITtN aMIv£ : SCALEITY Le: STATUS TfNHTR6NG: PROJECTIDIJAN : HANOI PILOT LIGHT METRO LINE Sedian Nhon •Hanci RailwayStation • a-io E>Au ru: TJVAN THl,fC Hli;:N DI/ AN PIC-TEC-GRR-ll'No.ID4-1~ - Technical Design Tuv£N SOONG sAT E>0 THI THI -E>li:M TP HA N()I Elofn N~n ·Ga Hil NOi • SYSTRAS.A u "' 21/11Y11 """"'"' A.K 3.Maurls . JOog HRB DESIGNED BY THltr K£ : FORMATKHO BAN ve: DATEINGAY: TTTlEITtN B.MiVE: NHUE RIVER CROSSING 2A """'"' 2nd aubmllalan ar lectmlcal daalgn A.K ].Maurls ·"'""' A.K A1 23/06/10 WQT SONG NHUe ~~ 1C D1/11Y1D """"'"' A.K G.Maur1s ·"'""' CHECKEDBYsoAT: This d'awilg must not be eilhlr IDMed, o:ipisd orOlharwiae rep'Ocluoed PIERS - P154 - REINF - BAR LIST.s ,. """" """"'"' A.K ~.Maurls P.Amaud HANOI METROPOLITAN RAIL TRANSPORT PROJECT BOARD G. Maurls In - er h pmrt ar uled for •nr prupmewthoullho prlarwrlllln •• BAN·~ AN oU'ONo sAroO THI HANQI pmnnmlon ol HRB. TRV · P154 · COT THi:.P · DANH MVC COT TH!=:P H 1A """" Flllll lsaua A.K 3.Maurls ·"'""'REVISION """ DESCRIPTION -· ..,.,. (Hl'CflE!QI PROJECTDIRECTORIGINAeocDIJ AN : CHIEF CESIGNERICll) NHla,lTHl£'T Ke : Mn vii My kh!lng 4JVC ~RI) d,lng - mol h"rlh lll)c, rr(ll phln hrly DR.WING NO.IBAN~ SO : I3An SO'AElOI ""y NOi DUNG sO'AElOI m• ..T ailrtil;Mllil~~ Alain B~chereau P.Amaud kllln ~ mll kh!lng41VC..,Mngf'blngvllnbllncilll HRB. PIC-TEC-GRR-WVO-J04-18242-B
  • 74.
    ~ ~ ~ ••• uii I~~ .s •• ~ H •n @ I 041 043 ml ~ (o41jo4)'.,m; ~~ ~ ~ ~ (o41Xo44Xo4~ ----- - ___.., ~=~ - ___.., ""~ ~~(o41Xo4)'.,o4~ @ - ~ -- - - 041 10~ y10 - ~ ZONE-D (STIRRUPS & TIES @240) KHU Vl/C -D (COT DAI & BU0C@240) (021) ~ ~ ~ ~ ~ ~ ~ ~ ~ >--- >--- >--- >--- >--- >------ ~ ~ ~ ~ ---- ~ ---- ~ ~ ~ 7 10L.J 8 ZONE-C (STIRRUPS@ 120 & TIES @240) KHU VIJC -C (COT DAl@120 & BU0C@240) J1o (030) I 001 88 @)022 ~ ::::::= ~ I u...L.L.I ====:;;; ~ - ~ I I I - ----- / . I - ----- - - : ' :e- ' --- ~ ' ( ' - ~ I I I I I I - ~ II I I ~- I=' - --- --- ------ --- ---++---- --- ---++ m++--- --- --- --°--+042 046 I I I / I I 1 1 :::::::::::::;! 1:1 I I I I I I I 042 046 I I / I I I ---- 042 046 = 042 046 042 046 = 042 046 = 042 046 = 042 046 = I ==I ---- ~ ~ - -- - t----- ---- --- = = = = === ~ ~ ~ === ~ ~ ~ = = = = 7 ~10 008 10 CJ J8 8 ZONE-8 (STIRRUPS & TIES @240) KHU Vl,IC -B (COT DAI & BU0C@240) t---+---+---------------+---_,,___,___--< ~~ru: "' 21/1B'11 ""'"'"' A.K .MauriB . Joing "' """11 2nd submission of lechnlcal daalgn A.K 1D 01/11»10 ""'"'"' A.K HRB - = ==== l:J --- ~ = =l:J- --- - = = = 1:1 = = === l:J = ==== l:J = = = 1:1 ~ ~ 002 HALF PLAN VIEW A-A NO'A MAT BANG A-A SCALE: 1/10 TtL.E; 1/10 PROJECT IMPLEMENTATION CONSULTANT ruvAN THl,fC Hli;:N Dl,f AN SYSTRAS.A 1C """" ""'"'"' A.K 18 """" Upo..d A.K __, t-=-F==-+==-------------+"~-_,F"=~1-_~_=~,-< HANOI METROPOLITAN RAIL TRANSPORT PROJECT BOARD 1A 1""''" Flllll lssua REVISION "'" DESCRIPTION SO'AElOI ""y NOi DUNG sCrA.ElOi A.K -·m• ..,.,...T .Arnaud BAN DI/AN DllbNG sA.To0THI HANQI (Hl'CflE!QI ailrtil;llillil~~ PROJECTDIRECTORIGINAeocDIJ AN : Alain B~chereau ~ lmj m FILE NAMEITtN aMiv£ : PIC-TEC-GRR-IHVOJ04-1112111>6_l1ADWG DESIGNED BYTHltrK£ : A.K CHECKEDBYsoAT: G. Maurls CHIEF CESIGNERCll) NHla,lTHl£'TK£ : P.Amaud I I I 1 t1 I I I I I}--- ---I / I Ii_ ______ :..::J ! I I / I I I______ _J ' I L I ', I /// I I I I I I I I I II / I I / I1 ; I I / / I I I - - -- I I - - - --- I I I L _____________________ ---------------------~ I ZONE-A (STIRRUPS & TIES @120) KHU Vl/C -A (COT DAI & BU0C@120) SCALEITYLe : FORMATKHO BAN ve: A1 STATUS TfNHTR6NG: Technical Design DATEINGAY: 19/02/10 This d'awilg must not be eilhlr IDMed, o:ipisd orOlharwiae rep'Ocluoed In - ot h pmrt ot uled for •nr prupmeWlhoullho prkrwrlllln pmnnllillon ol HRB. NOTES:--------------- GHICHIJ: 1. REINFORCEMENT YIELD STRENGTH: FY=420 MPA. 1. CUONG £>0 CHAY COA COT TH!:P fc=420 Mpa. 2. CONCRETE COVER: C=50 MM. 2. LdP ee TONG BMl ve: c=5D mm PROJECTID1JAN : HANOI PILOT LIGHT METRO LINE Sedian Nhon •Hanci RailwayStation Tuv£N SOONG sAT E>0 THI THI -E>li:M TP HA N()I Elofn N~n ·Ga Hil NOi mLEl~NBANt, NHUE RIVER CROSSING WQT SONG NHUe PIER CAPS - P151-P154 - REINF -1/7 MO TRV • P151-P154 ·COT THi:.P • 1I7 DR.WING NO.IBANVESO : PIC-TEC-GRR-WVO-J04-18260-B 3A
  • 75.
    ~ ~ 2 •iii •ii uI~~ .s •• ~H • n ZONE-D (STIRRUPS & TIES @240) KHU Vl,IC D (COT DAI & BU0C@240) @ - (021) 022 023 I 041 043 ~ -- ~~:;; ~ i ~ (o41Xo44Xo4~ I !:=!= • I -- - ~ - -- -- ~ -- ~ ~ =--- - -- - -- -- -- 1---- ----r--- 041 ====E § @42Xo46Xo47Xo4~ ~ I ~ ~ --- 042'f046'fo47J04~ -==r-- (042X046XmXo'' =r - - 042 046 047 049 042'fo45'fo47Jo4~ (042X046Xm, =r - - ~ r,,l-- - ~-- -- - -- - --- ---- = = ~- = = u ~ ~ = ~- - - u ~ ,llZONE-B (STIRRUPS & TIES @240) KHU Vl,IC -B (COT DAI & BU0C@240) t---+---+---------------+---_,,___,___--< ~~ru: "' 21/11Y11 2A """'"' Updated A. K . Maurls ..laing HRB = I = " "' ,I, 051 HALF PLAN VIEW 8-8 NliA MAT BANG B-B SCALE: 1/10 TI' LS: 1/10 PROJECT IMPLEMENTATION CONSULTANT nrvAN THl,fC Hli;:N DI/ AN SYSTRAS.A 1C """",. """" Updated A. K . Ameud t-=-F==-+u~,~-=-------------+A~.~K---F==--<e.~-=~,---< HANOI METROPOLITAN RAIL TRANSPORT PROJECT BOARD Flllll lssua A. K .Ameud BAN DI/AN DIJ'bNG sA.T£>0THI HANQI1A '""''"REVISION "'"SO'AElOI ""y DESCRIPTION NOi DUNG sO'AElOI IEIH!lllr CIEOO!lllr (Hl'CflE!QI Hr!G: lni.T ailrtil;Mllil~IG: PROJECTDIRECTORIGINAeocDIJ AN : Alain B~chereau - e- -- I 026~ ~ 051 FILE NAMEITtN aMIv£ : PIC-TEC-GRR-IHVOJGl-111281-B_llADWG DESIGNED BYTHltrK£ : A.K CHECKEDBYsoAT: G. Maurls CHIEF CESIGNERICll) NHla,lTHl£TK£ : P.Amaud 030) I 111 I 1!1 I 1!1I 1!1 I 1!1 I I 111 I I I 1!1 I 1!1 I - r- I I ,I; SCALEITYLe : FORMATKHO BAN ve: A1 ZONE-C (STIRRUPS@ 120 & TIES @240) KHU Vl,IC C (COT D 1@120 & BU0C@240)- .. I I r- ---------------------, I I -v I +> I I/ I - - I I • r I I ' ' I I I : I I ~ / I l I I I I I I I I I I I/ -- --~ I I I I / I / ' / I/ / I - - / / / : - - c c. - - - - - - r- ____________ _J I e I 003 069 ~ c :J 051 ZONE-A (STIRRUPS & TIES @120) KHU Vl,IC -A (COT DAI & BU0C@120) STATUSTfNHTR6NG: Technical Design DATEINGAY: 19/02110 NOTES:--------------- GHICHIJ: 1. REINFORCEMENT YIELD STRENGTH: FY=420 MPA. 1. CUONG £>0 CHAY COA COT TH!:P fc=420 Mpa. 2. CONCRETE COVER: C=50 MM. 2. LdP ee TONG BMl ve: c=5D mm PROJECTID1JAN : HANOI PILOT LIGHT METRO LINE Sedian Nhon •Hanci RailwayStation Tuv£N SOONG sAT E>0 THI THI -E>li:M TP HA N()I Elofn N~n ·Ga Hil NOi mLEl~NBANt, NHUE RIVER CROSSING WQT SONG NHUe This d'awilg must not be eilhlr IDMed, o:ipisd orOlharwiae rep'Ocluoed ln-crhpmrtcruledfor•nrprupmelllllhoullhoprkrwrlllln pmnnllillon ol HRB. PIER CAPS - P151-P154 - REINF -2 / 7 MO TRV •P151-P154 -COT THi:_p. 2 I 7 DR.WING NO.IBANVESO : PIC-TEC-GRR-WVO-J04-18261-B 3A
  • 76.
    ZONE-B&D KHUVVC-B&D 7 (o41(o42) ~~I I I I (o2D I I I /I,, " " " "jj jj jj jj jj jj A 002 ~ []04 - ,__, ~ ;=!== ;=== ;== ;=== d~ I= =031 ~ ~ ,_ ~ ~ ~ ____]__ 1ol.J J108 8 ~®---- 4 I·= ;=== ;=!== ;=== ;== ;=== I= =031 ~ ~ ,_ ~ ~ ~ 1 ________ ---------~l;JA!L-_1_ CHI Tli:t'-1 I I I I I :~I I I/ I I I I /(o25,/ I J J. J I J J. ' " " " " '~~ ~~ 051 ~~008 ____]__ 10~ y10 063 ------------- --------- I 063 I I I I I I I I 064 I ~~f§Efif§----<061 D 11------~---uo62 11 -----------------------------~ I I ) 011 051 ~~ ,__ '------- --------- - r--. ----------r--- ,__________---------005 ~------051 - ------- -------'--------051 026 '---..~ ~ -------- 022 023 ----~- CJ'7~ ~ - ELEVATION VIEW C-C 051 -~ MATJl~f~~ C-C @ Ti' LE: 1110 525 LJTO BE ADJUSTED IN CASE OF CONFLICT WITH DRAINAGE PIPE ~~ SE: e1eu CHINH NEU co XUNG f>OTVO'I EllJO'NG ONG THoAT NLIO'C ~---tc063 MESH & JACK DETAIL I III '11 ~ ZONE-A&C KHUVVC-A&C =:dJTO BE ADJUSTED IN CASE OF CONFLICT WITH DRAINAGE PIPE SE: e1eu CHINH NEU co XUNG DOT VO'I El/ONG ONG TI-IOAT NUO'C --- 069 003 ~§49) I I /(021 I I I I ,' " I I I I 'I ~ I ~ ~ ~ ,-------@~ 'I I I I ~ : I I ~ 051 r ~LJ ~ ~ DETAIL-1 (PEDSTAL REINFORCEMENT) CHI TIET LU'OI & KICH ~~6~~,= -------~ CHI TIET-1 (COT THEP Bl; E>O') SCALE:1NO 1.REINFORCEMENTYIELDSTRENGTH:FY=420MPA. SCALE: 1110 TI'LS: 1110 1. CUONG £>0 CHAYC0ACOTTH!:Pfc=420 Mpa. rt LS: 1110 2. CONCRETE COVER: C=50 MM. ~ 2. LdP BE TONG BM) ve: c=50 mm ~1-~~~~~~~~~~~~~~~~~~~~~~~~~~~~~~~~~~~~~~~~~~~~~~~~~~~~~~~~~~~~~~~~~~~~~~~~~~~~~"--1 ; ••• uii I~~ .s •• ~ H • n t---+--+---------------+---+---1-----1 CLCHIO~:.,..., •·. 11 PROJECT IMPLEMENTATION CONSULTANT FILE NAMEltN a.i.Nv£: SCALE TYl.E:: STATUSTfNHTR6NG: PROJECTl[)IJAN: HANOI PILOT LIGHT METRO LINE Sedian Nhon. Hanci RailwayStation CllU •u • nrvAN THIJC Hli;:N DI/ AN P1c-TEC-GRR-W'lo.Kl4-11121H_MDWG Technical Design TUY£N aOONG sAT E>O THI THI -E>li:M TP HA N()I E!ofn N~n. Ga Hil NOi SYSTRAS.A DESIGNEDBYITHltTK£: FORMATIKHOBANVE: DATEINGAY: TTTl.El'ftNB..i.NE.: NHUE RIVER CROSSING "' 21/11Y11 """"'"" A.K 2A """'"' 2nd aubmllalan ar lectmlcal daalgn A.K HRB 1C """'" """"'"" A.K ,. """'" Upo..d A.K ·"'""'l-~-l"=~+==~------------+=---1==~1-.~-=,"--' HANOI METROPOLITAN RAIL TRANSPORT PROJECT BOARD 1A '""""" Flllll lssua A.K .Arnaud BAN DI/AN DllbNG sA.To0THI HANQI REVISION "'" DESCRIPTION -· CIEOO!lllr (Hl'CflE!QI SO'AElOI ""y NOi DUNG sO'A00 m• lni.T ailrtil;Mllil~~ A. K A1 19/02110 WQT SONG NHUe CHECKEDBYlsoAT: "''...,.••~••"•.,.,~,.,-• .....,..-""" PIER CAPS - P151-P154 - REINF -3 / 7 G. Maurls ::.:::::-i:i'."°uuc1ror•nrprupmni1tticut111op11ar'Mllan MO TRV. P151-P154 -COTTHi:.P-3/7 PROJECTDIRECTORIGINAeocDIJ AN : CHIEF CESIGNERCll) NHla,lTHl£'TK£ : Mn v11 My kh!lng 4ivc ~ m a,ing - mo111-..11lh)c, m(ll phln hrly DR.WING NO.BAN VE SO : Alain B~chereau P.Amaud ~... ~-.-~,,..,..., __ a,~. PIC-TEC-GRR-WVO-J04-18262-B 3A
  • 77.
    ~ ~ ~ •ii I ~• (~- ~ 1- I I I II I A "jj I I L ~ ~ I-< Llllt= -~ -Ol1 ~ ~ @ ... - -- -Ol1 ~ ~ 00 B ~~Ill DETAIL-2 Y'CHITI~-2 I ' u I II I I _J - -- -~ ~ - -- -~ ~ I ZONE-B&D KHUVVC-B&D (041)§42) I (o2D I 001 ~ 2 (o41) I I I I I - -~ - - - -~ ~ ~ ~051 ~ 051 r--~ ------------- 029 -===-=J--.- t----__067 4 ~ I (oiO) I 1"02s ~ A -.]_.) (04lJ045) I 1 '027 ~ ZONE-A&C KHUVVC-A&C ~ ~ ~ I ' __J__ 10[ ]10u u ---8 8 I I 007 011 @ ~ ~ ~ ~ 0 r---______ '------.__'------ 051 ~ -------- ~ -~ ' i 067 I I I 068 068 065 0 n------i----<066 n 11----tt--il-->r---~---<·066 DETAIL-2 (PEDSTAL REINFORCEMENT) CHI Tl~T-2 (COT TH~P Bl; ElO') SCALE: 1110 Ttu;.: 1/10 !!I~~ ~ ~ 18 067 "' ~~I355~061 MESH & JACK DETAIL CHI Tl~T LU'O'I &KICH SCALE: 1/10 Ti'LE: 1110 • CLIENT:1--4---+-------------4------t---;-----t a-iOElAuru: • HRBu "' 21/11Y11 """"'"' A.K 2A """'"' 2nd aubmllalan ar lectmlcal daalgn A.K ."'"' 051 026 ----- ~ ------ ------- - !-__ ELEVATION VIEW D-D M~T ElO'NG D-D SCALE: 1/10 Ti'LE: 1110 PROJECT IMPLEMENTATION CONSULTANT nrvAN THl,fC Hli;:N DI/ AN SYSTRAS.A 051 '--- ,.__~,.__ 051 FILE NAMEITtN aMIv£ : SCALEITYLe : PIC-TEC-GRR-IHVOJ04-'lll26:Hl_llADWG DESIGNED BYTHltrK£ : FORMATKHO BAN ve: A.K A1 ' I ~ ' 051 STATUSTfNHTR6NG: Technical Design DATEINGAY: 19/02/10 ·-'l-"'--+==0-->==-----------+'~--+--+-.----,-I HANOI ME'TROPOUTAN RAIL TRANSPORT PROJECT BOARD ~~ 1C """" """"'"' A.K .s ,. """" Upo..d A.K •• CHECKED BYsoAT: Thisd'awilg must not be eilhlr loaned,o:ipiecl orOlharwiaerei:roc!ID!ld G. Maurls ln-crhpmrtcruledfor•nrprupmewthoullhoprkrwrlllln H 1A '""'"' Flllll lssua REVISION "'" DESCRIPTION n SO'AElOI ""y NOi DUNG sCrA.ElOI A.K -·m• ""'"'"..T .Arnaud BAN DI/AN DU'bNG sA.TE0THI HANQI (Hl'CflE!QI ailrtil;Mllil~~ PROJECTDIRECTORIGINAeocDIJ AN : f========---1 pmnnmlono!HRB. CHIEF CESIGNERICll) NHla,lTHltrK£ : Mn v11 nay kh!lng 4ivc ~ ma,ing - moi hhh lh)c, m(ll phln tay Alain B~chereau P.Amaud ta11n~mllkh!lng4JVC..,~t~vllnbinC11111HRB. NOTES:~------------­ GHICHIJ: 1. REINFORCEMENT YIELD STRENGTH: FY=420 MPA. 1. CUONG £>0 CHAY COA COT TH!:P fc=420 Mpa. 2. CONCRETE COVER: C=50 MM. 2. LdP ee TONG BMl ve: c=5D mm PROJECTID1JAN : HANOI PILOT LIGHT METRO LINE Sedian Nhon •Hanci RailwayStation Tuv£N SOONG sAT E>0 THI THI -E>li:M TP HA N()I Elofn N~n ·Ga Hil NOi mLE~NBANt, NHUE RIVER CROSSING WQT SONG NHUe PIER CAPS - P151-P154 - REINF -4 / 7 MO TRV • P151-P154 -COT THi:.P- 4 I 7 DR.WING NO.IBANVESO : PIC-TEC-GRR-WVO-J04-18263-B 3A
  • 78.
    [ ~ ~ :;: ••• uii I~~ .s •• ~ H •n II TO BE ADJUSTED IN CASE OF CONFLICT WITH DRAINAGE PIPE ; · ·01oU CHINH ~CU XUNG eQT •ul 0"'1NG <i3HOAT Nuuu I I I ~I I ~I I ~I 1iT 1'iiil,-,..f-1 """~-""11"""""" 1 1""""""1""""""1"""""" 1 1""'"'1...'.1"" 1(0211~}--------+... rr [~r-~~-1-lf~·1--~1--~-1--~-1------1 I ' ~c--------"1008O---l--+-> 1 ~--t~--tl----11---1--l--~rl------1042 (§J)----i-i--.1~',_~I • (Oo:0 SECTION 1-1 MAT CAT 1-1 SCALE: 1/10 Ti't..,e.: 1/10 ' II II II 1iT1if1if1 021)----r----+~-fl II II I I I TO BE ADJUSTED IN CASE OF CONFLICT WITH DRAINAGE PIPE /So01oU CHINH ~CU XUNGeQTVUl0uuNG U~HOAT Nuuu I li l I l l ------1008 (Ol}------t/ 11----.~1c-o-~..----.~-----~..----o-~+-i.J-_'-~~--1€31 l-L~-t-""'l'--P---~~,,.....,...----t--'lt---t-~'-t---f"---t~~---f"--t----t ;'ltl--i-J..~_J' @ ' @ '' 1l @-L' ~ = - .~ I I I I I ~ SECTION 2-2 MAT CAT 2-2 SCALE: 1/10 Ti' LI~:: 1/10 NOTES:--------------~ GHICHIJ: 1. REINFORCEMENT YIELD STRENGTH: FY=420 MPA. 1. CUONG £>0 CHAY COA COT TH!:P fc=420 Mpa. 2. CONCRETE COVER: C=50 MM. 2. LdP ee TONG BMl ve: c=5D mm t---+--+---------------+---+---1-----1 ~~TU: PROJECT IMPLEMENTATION CONSULTANT ruvAN THl,fC Hli;:N Dl,f AN SYSTRAS.A FILE NAMEITtN aMIv£ : SCALEITYLE:: PIC-TEC-GRR-IHVOJ04-1112&Hi_l1ADWG DESIGNED BYTHltTK£ : FORMATKHO BAN ve: STATUS TfNHTR6NG: Technical Design DATEINGAY: 19/02/10 PROJECTID1JAN : HANOI PILOT LIGHT METRO LINE Sediorl Nhon •Hanci RailwayStation Tuv£N -E>LIONG sAT E>0 THI THI -E>li:M TP HA N()I Elofn N~n ·Ga Hil NOi mLEl~NBANt, NHUE RIVER CROSSING WQT SONG NHUe"' 21/11Y11 """"'"' A.K 2A """'"' 2nd aubmllalan ar lectmlcal daalgn A.K HRB."'"' 1C """" """"'"' A.K ,. """" Upo..d A.K ·"'""'l-~-l"=~+==~------------+=---1==~1-.~-=,'-' HANOI ME'TROPOUTAN RAIL TRANSPORT PROJECT BOARD 1A '""''" Flllll lsaua REVISION "'" DESCRIPTION SO'AElOI ""• NOi DUNG sCrA00 A.K -·m• ,,.,.,...T .Arnaud BAN DI/AN DU'bNG sA.To0THI HANQI (Hl'CflE!QI ailrtil;Mllil~~ A.K CHECKEDBYsoAT: G. Maurls PROJECTDIRECTORIGINAeocDIJ AN : CHIEF CESIGNERICll) NHla,lTHl£TK£ : Alain B~chereau P.Amaud A1 This d'awilg must not be eilhlr IDMed, o:ipisd orOlharwiae rep'Ocluoed ln-crhpmrtaruuclfor•nrprupmelllllhoullhoprlarwrlllln pmnnllillon ol HRB. PIER CAPS - P151-P154 - REINF -5/7 MO TRV • P151-P154 ·COT THi:.P • 517 DR.WING NO.IBANVESO : PIC-TEC-GRR-WVO-J04-18264-B 3A
  • 79.
    ~ ~ • •••• uii I~~ .s •• ~ H • n [8 [8 ~II I I I I I I j 11)~1 ~1 1 ~1 ~1 1~1 ~1 1 0 ~~ ~0 I ' ~ • - r @) - I ~ • c ---v 030 (] ' r - 009 r - r - 032 ~ ' r - r - r - 032 ' r - ~ c I I I I I I I~II ~I ~I ~I ~II ~I •1.IJ ---v I •r~ @----1-r- ·~ .r~ 8-----1 I ~r- --------@) ~ • •r~ ~ r@ r~ @J ' ~ ~· •r~ •r~ 009 r@ I r~ @J ' ,- &- •r~ &-~ TO BE ADJUSTED IN CASE OF CONFLICT WITH DRAINAGE PIPE TO BE ADJUSTED IN CASE OF CONFLICT WITH DRAINAGE PIPE @L ~· ---- ~ 047 ~ I...... """ ~ ' r - ;si;E1eucHTNH NeucOXUNG~ v6'I E>UONG ONG THOAT NU¢C 003 I ' Ii Iii z I 069 I J . I I I I I I ~ SECTION 3-3 MAT CAT 3-3 SCALE: 1/10 T"r'LS:1110 bl/I Z I ii ii JI I JI 11 I I I I ,, I _L)'i--I I ., I 1: I ,.... €YI tyI ............_,, 051 t---+--+---------------+---+---1------1 ~~ru: "' 21/11Y11 """"'"' A.K 2A """'"' 2nd aubmllalan ar lectmlcal daalgn A.K HRB."'"' 1C """" """"'"' A.K ,. """" Upo..d A.K ·"'""'l-~-<'=~+==~------------+=---1==~1-.~-=,'"-' HANOI METROPOLITAN RAIL TRANSPORT PROJECT BOARD 1A '""''" Flllll lssua REVISION "'" DESCRIPTION SO'AElOI ""y NOi DUNG sCrA.ElOI A.K -·m• ..,.,...T .Arnaud BAN DI/AN DllbNG sA.To0THI HANQI (Hl'CflE!QI ailrtil;Mllil~~ 'o2s ...... ,, ~ 048 1 PROJECT IMPLEMENTATION CONSULTANT ruvAN THl,fC Hli;:N Dl,f AN SYSTRAS.A PROJECTDIRECTORIGINAeocDIJ AN : Alain B~chereau ~ ~· •r~ ;si;e1eucHINH Nt:UCOXUN~ TVOi E>UONG ONG THoAT NU'O'c @ 003 I ~ I ' ,f ~ ---- ~ Ii ii I ii 069 047 / " I I I I I 047 ~ .......• I '047 ~-· I I ! 047 I "'"' I 047 i ~~' J I 047 - I FILE NAMEITtN aMIv£ : PIC-TEC-GRR-IHVOJ04-111265-6_l1ADWG DESIGNED BYTHltrK£ : A.K CHECKEDBYsoAT: G. Maurls CHIEF CESIGNERICll) NHla,lTHl£TK£ : P.Amaud ~ SCALEITYLe : J I I I I I I I ~ SECTION 4-4 MATCAT 4-4 SCALE: 1/10 Ti' LE: 1110 STATUSTfNHTR6NG: I Technical Design FORMATKHO BAN ve: DATEINGAY: 19/02/10A1 I This d'awilg must not be eilhlr IDMed, o:ipisd orOlharwiae rep'Ocluoed ln-crhpmrtcruledfor•nrprupmelllllhoullhoprkrwrlllln pmnnllillon ol HRB. I j II I ii z I ii ii ii ii Ii ] I I I I I ' I // 048 _-·v 051 ¥ " /~ NOTES:--------------~ GHICHIJ: 1. REINFORCEMENT YIELD STRENGTH: FY=420 MPA. 1. CUONG £>0 CHAY COA COT TH!:P fc=420 Mpa. 2. CONCRETE COVER: C=50 MM. 2. LdP ee TONG BMl ve: c=5D mm PROJECTID1JAN : HANOI PILOT LIGHT METRO LINE Sedian Nhon •Hanci RailwayStation Tuv£N SOONG sAT E>0 THI THI -E>li:M TP HA N()I Elofn N~n ·Ga Hil NOi mLEl~NBANt, NHUE RIVER CROSSING WQT SONG NHUe PIER CAPS - P151-P154 - REINF -6 / 7 MO TRV • P151-P154 -COT THi:.P- 617 DR.WING NO.IBANVESO : PIC-TEC-GRR-WVO-J04-18265-B 3A
  • 80.
    ~ ~ ; ••• uii I~~ .s •• ~ H •n ? c f f f f v- I I fl ff ff ff --v1)1 1)1 1)1 IJVJ -~ ' ~ 8 - ' ~ 10 ~ --------@ • ' ~ @ ~ ' , -------@ ' ~ • ' ~ 009 0---1 (§) ' -------@ ' ~ ' ~ TO BE ADJUSTED IN CASE OF CONFLICT WITH DRAINAGE PIPE '~ • ~ ;s~ Elli=:U CHINH Nl:.U COXUN~ T VO'I Ell!ONG ONG THoAT NLIOC JEl 003 ~ l ----- 71 --v~ f ~ 71 ~I i• 1, I • I I u I fl] I I I 02 &-- ~ )- '== :::0 I == :::0 I • I I /f 048 '~ I I I "'= :::0 I [I 049 ~' ~ I I I~I I LJI I 028 oos) I ! ".1 I I I I I I J _1'I I I I J : I I I I I ~ SECTION 5-5 MAT CAT 5-5 SCALE: 1/10 rti...e:1110 t----+--+---------------+---+---+-----1 CLIENT: t----+--+---------------+---+---+-----1 a-iOElAuru: I I 1: I I I "' 21/11Y11 """"'"' A.K 2A """'"' 2nd aubmllalan ar lectmlcal daalgn A.K HRB."'"' u"I I ,,( I I I 1C """" """"'"' A.K ,. """" Upo..d A.K ·-'1--~-+'=~+.'"=~------------+=---l="=~J.-.~-=,"--' HANOI ME'TROPOUTAN RAIL TRANSPORT PROJECT BOARD 1A '""''" Flllll lssua REVISION "'" DESCRIPTION SO'AElOI ""y NOi DUNG sCrA.ElOI A.K -·.... ..,.,...T .Arnaud BAN DI/AN DU'bNG sA.TE0THI HANQI (Hl'CflE!QI ailrtil;Mllil~~ I 070 PROJECT IMPLEMENTATION CONSULTANT nrvAN THl,fC Hli;:N DI/ AN SYSTRAS.A PROJECTDIRECTORIGINAeocDIJ AN : Alain B~chereau FILE NAMEITtN aMIv£ : PIC-TEC-GRR-IHVOJ04-111211&6_3ADWG DESIGNED BYTHltrK£ : A.K CHECKEDBYsoAT: G. Maurls CHIEF CESIGNERCll) NHla,lTHl£'TK£ : P.Amaud SCALEITYLe : FORMATKHO BAN ve: A1 STATUSTfNHTR6NG: Technical Design DATEINGAY: 19/02110 This d'awilg must not be eilhlr IDMed, o:ipi!lcl orOlharwiae rep'Ocluoed In - er h pmrt ar uucl for •nr prupmaWlhoullho prkrwrlllln pennllillon ol HRB. BAR MARK N" BARS/SPACING 001 002 003 004 005 006 007 006 009 010 011 021 022 023 024 025 026 027 028 029 030 031 032 041 042 043 044 045 046 047 048 049 051 061 062 063 064 065 066 067 068 069 070 2x9xD32@120 2x8xD20 @160 2x11xD32 @160 2x8xD20 @160 13xD16 @150 11xD20 10xD16 @150 2x10xD16 @150 10xD16 @150 2x10xD16 @150 2x3xD12 @150 2x10xD16 @240 2x1xD16 @240 2x1xD16 @240 2x1xD16 @240 2x13xD16 @120 2x13xD16 @120 2x8xD16 @120 2x8xD16 @120 2x2xD16 @240 2x21xD16 @120 2x21xD12 @240 2x23xD16@240 5x2x12xD12 @240 8x2x1OxD12 @240 2x11xD16 @240 3x2x7xD16 @240 2x4x3xD16@240 8x2x2xD12 @240 6x2x13xD14@120 2x2x21xD14@120 2x8x6x014 @120 2x34xD16 @150 2x4xD12 2x2x3xD12 2x2xD8 2x2x2xD8 4x4xD12 2x4x3xD12 2x4xD8 2x4xD8 2x18xD18 2x2xD16 NOTES:--------------~ GHICHIJ: 1. REINFORCEMENT YIELD STRENGTH: FY=420 MPA. 1. CUONG £>0 CHAY COA COT TH!:P fc=420 Mpa. 2. CONCRETE COVER: C=50 MM. 2. LdP ee TONG BMl ve: c=5D mm PROJECTID1JAN : HANOI PILOT LIGHT METRO LINE Sedian Nhon •Hanci RailwayStation Tuv£N SOONG sAT E>0 THI THI -E>li:M TP HA N()I Elofn N~n ·Ga Hil NOi mLEl~NBANt, NHUE RIVER CROSSING WQT SONG NHUe PIER CAPS - P151-P154 - REINF - 717 MO TRV - P151-P154 -COT THi:.P- 7 I 7 DR.WING NO.IBANVESO : PIC-TEC-GRR-WVO-J04-18266-B 3A
  • 81.
    ~ ~ i I!! ~ t ui w.!: F % !I $i !;l 8 ~ uii: B 15 ES1 S1 SAB' SA7' SAS' ®0 DETAILX CHI Tl~TX SCALE: 1/10 T'i'Ll;::1/10 RE~FOR PT CONFLICT ~-E1£U CHINH TliANH COT THEP 001 VOi XUNGE PT - --- --- 8 @ 0 9@ 8 - ~>SECTION A-A MAT CAT A-A "scALE: 1r.zo T'i'LS:1/20 o----+----+----------------+----....___....____. Q.IENT: o----+----+----------------+----....___....____. CHOflAuru: 3" 21/11Y11 2A 3004'11 HRBUpda111d A.K 2nd aubml11lon at'lechnlcal dMlgn A . K 1C ~8110 =o= '=~= x ~ _,_@_, •18 2Ml&'IO Upda111d A. K UPDATED A. K HANOI METROPOLITAN RAIL TRANSPORT PROJECT BOARD SA9 S3 SB9 KEY PLAN K~ HOJ;CH CHfNH SCALE : 1/200 T'i'Ll;::1/200 N Ci 12 0-DB Q [10x6x2J @300 ~ .,,CD a Ca ·-o:;:e. ~ ~ 1--~D~16~s - - - PROJECT IMPLEMENTATION CONSULTANT 11 VAN THl,IC HreN DI,/ AN SYSTRAS.A FILE NAA1ElTtN e,l,i/£: DESIGNED BYTH1"1K£: A.K CHECKED BYSlll.T: G. Maur1s I I ' S2 ES2 SA2' SA1' PS1 SA2 ~~ ~1 ~J SA1 PS1 SB2 17& SB1 PS2 SB2' ~ SB1' PS2 I I I I ~~ I I --, ---,.-, --, ' 11 I I I / 2x20 012 @150,:. !, '-- --- i.- - ~ --- --- --- --- =DE'IAILX) I [; ,_ '-- I- ,__ :S ~ ~ ::r e--- ,__ '-- I - '-- ,___ ~ e-- '---- CHITIETX - ,_ L--- @- I/ ""'" ,_ '-- - BLISTER TYPE 1 ROLOAI 1 REINFORCEMENT SEE DWG. COT THEP XEM BANvE PIC-TEC-GRR-WVO-J04-18650-B PIC-TEC-GRR-WVO-J04-18651-B ;! c • o "'"':Si. - SCALE TYLE: FORMATKHO BAN VE: A1 L-- / L" (~A STAlUS TfNH~G : Teclmical Oesign DAlENGAY: 31/01/10 Thil <Rwi'ID mUll:notbe eithlrlOlrled,<q>ied«otl'lll'Wile NP'Odiacl ln wtdeah P11rtorul8dfor•nr prupmewllhoul:.. prlor'Mltsl parmlllllonot HRB. . SECTION 8-B MAT CAT B-B SCALE: 1120 T'i'Ll;:1/20 2x20-D20 @150 01 01~ 006 01~ 007 DB 009 NOTES: ~~~~~~~~~~~~~~~~~~~~~~ GHI CHL.f: 1. REINFORCEMENT YIELD STRENGTH: FY=420 MPA. 1. ClldNG E0 CHAY CllA cx:fTTHE'.P :fy---420 Mpa 2. CONCRETE COVER: C=50 MM. 2. LdP BE TONG M Ov£c=50 mm 3. FOR PARAPET S"fARTER BARS REFER TO DWG. NO. 3. E£ XEM THANH COT THe!P CHO'COA LAN CAN XJN XEM BAN VE SO PIC-TEC-GRR-WVO-J00-18803-B TO PIC-TEC-GRR-WVO-J00-18808-B PROJECT CVAN: HANOI PILOTLIGHT METRO LINE Sedion Nhon•HantiRailway S1ation TIJY£N flOONG sATElO THITHIfllEM1l'HA NQI Batn N~n · GaHi NOi Tm.E TtNB,l,iVE: NHUE RIVER CROSSING VU'QT SONG NHUI;: DECK- SA1-SA1'-SB1-SB1I - REINF - 1/2 BAN W,T cAU • SA1-SA1'-SB1-SB1' - c0T TI·H::P -1 / 2 1A 31m11101----+---+-F-lm--..--------------+-,.-.K---4---4-----1 BAN DI/AN llWNG IA.TllOTHI llANQI REVISION DATE DESCRIPTION NQI DUNGWAfJOI IHIHl!BI' HIM! CllllCIDBI' IOI.! PROJECTDIRECTORGIAMaoc01,1AN: CHIEF ~IGNERCll) NHleMlll1£rKe: ......My_..,.,._.......1111 ..... ..,.. .... _m(llpMnt.y ....~ ...- .........~t~'"""'""'""""· DRAl'l1NGNO. BANV£SO: SLrAOOI Nal.Y Alain B~cheraau P. Amaud PIC-TEC-GRR-WVO-J04-18500-B 3A
  • 82.
    8oc T1pe ,,,, Total hope Bend I 8oc Type No ofNboa'.~ Total llen fh hope Bend 8oc Type No 1,fNboar To~ol hope Bendfbor Length Lengthmark '"" o1 ""'h ,, [ode Type D1menmns Shape "" mark '"" of inmh No. g Code Type D1mens1ons Shape "" mar• '"" of in,.,h ,, Code Type Dimensions Shape ""s11e memb memo me memb rnemb Sile m•mb memb " " " " "" " "" " "" "" " " °'' D16 1 46 46 3740 OD Ad140 = on D8 1 120 120 63D 99 1 A=l19 B=40D b "" DS 1 • • 1160 99 2 A=86 BdSI [=140 Ddl5 n002 D12 1 116 116 3560 00 A=l555 = 031 D18 1 40 40 3350 15 1 A=1601 B=1411 [=715 ~ 8'1 D16 1 12 12 1340 51 2 A=10D B=1&0 [=143 g 003 D14 1 3D 30 3660 00 A=lO>l = m D16 1 2D 2D 6270 15 1 A=J1J4 B=Ol C=lll4 ~ m D16 1 4 4 1100 21 2 A=90 B=10J [=Ill IbdI °" D16 1 52 52 3740 00 Ad140 = m D16 1 20 20 3710 00 A=l109 =000 D14 1 20 20 5300 25 1 A=00lB=0Dl[=515D=575E=4079-·•1U1~ rn D12 1 40 40 3850 15 1 A=115J B=5B1 (=170l ~MEAN ·~ ""'.... ~· '°' D14 1 20 20 5120 25 1 A=&OlB=O~J[=515D=515E=l81l-•40l1~ m D12 1 40 40 2050 99 1 A=SJO B=14i C=14l4 yMEAN aMl"a1=10" ·~ ""'.... ~· '°" D10 1 40 40 1630 15 1 A=l1l 8=145 C=14&1 ~ m D12 1 40 40 1350 15 1 A=69l 8=l97 (=Oll cl=S50 ~ OOB DB 1 12 12 1680 99 2 A=l99-·l49 8=l51 [=315 n m D10 1 40 40 1350 13 1 A=l115 E::::=MEAN ·~ ""'.... ~· ·~011 D20 1 40 40 6655 99 2 040 DB 1 4 4 1130 99 2 A=98 B=l51 C=l15 nMEAN ·~ ""'.... ~· A=1Q B=J9J [=1ll4-•1111 D=lli E=1J3J-•1811 F=104 041 DB 1 B B 1140 99 2 A=l01 B=l51 C=l15 ne<1=1lS'e<2=11"e<l=108'e<4=11"e<S=llS' '"""•-OT>- """""-011'- ,,.,,..._,,,_ c c Total Lengths and WeighJ-s Number of members 1 Type T Type R BENDING DIAMETERS Imm] ~ D1omotors 6 • m 12 " " " 22 22 " " 22 % 00 Lengths of standard hooks Imm)Total Weight Total Total Weight Total HooksDiameter Length per unit Weight Length per unit Weight % '" 40 22 " % m• 110 m ''° "' "' '"" m '"' lkglm] lkgl '"' lkglml [kg] 0 1Type11 IDiam,ters I 6 I s I 10 I 12 I 14 I 16 I 1s I 10 I 21 I 2s I 20 I 12 I 36 I 40 ~ Frames 24 32 40 4B % 64 m• 120 132 ''° "' '" '"" 322 6 0 0.222 000 !Type 21 ~ 119 0395 Hooks 0 0 0 0 0 0 0 0 0 0 0 0 0 0 mhoroge• 118 46.BB 1Type11 !Type II % '" "' "" ,,, "' "' "' ;oo m '"' rn '"°~ 0 0 10 119 0.617 73 55 Frames 0 0 0 0 0 0 0 0 0 0 0 0 0 0 @_ Fromos 22 % '" "' "" ,,, '" "' "' ;oo m "' rn '"°~ ITypo 21 IType11 12 703 0.686 624.23 mhoroges 0 0 0 0 0 0 0 0 0 0 0 0 0 0~ ITyp,11 14 31B 1.210 385.02 •~ Fromos 0 0 0 0 0 0 0 0 0 0 0 0 0 0 16 5"7 1580 926.83 iT"0 •11 ~ BAR DIMENSIONS1B 134 2000 268 00 ~ mhoroge20 266 2 470 657.51 - THE DIMENSIONS ARE GIVEN ON THE OUTSIDE FIBER OF THE REBAR ISEE BELOW! • % '" 40 " " % m• "' m ''° ,,. "' '" '"~ ~ 0 !Type II 22 0 2.960 0.00 - THE TOTAL LENGTHS ARE CALCULATED ON THE BASIS OF THE CENTERLINE Fromes % '" 40 " " % '" 110 m ''° ''" ,,, '" '"~ IT""'11 25 0 3.850 0.00 [ISO 3766 2004 - METHOD Bl mhoroges~ 0 0 0 0 0 0 0 0 0 0 0 0 0 0 20 0 4.830 0 00 - THE BENDING ANGLES ARE GIVEN IN DEGREES • ITio•ll ~ Fromos 0 0 0 0 0 0 0 0 0 0 0 0 0 0 32 0 6 310 0 00 A E IT""•11 ~ n____K' 36 0 7.990 0 00 ~ mhor;ige40 0 9 860 0 00 • o; o; o; o; o; o; " BO .. mo "' "" "' ,40 ~ ~~ ,tr- 0 ITyp,11 Fromos 4; o; o; o; o; o; " BO .. mo "' "" "' ,40 1Type11 Type T Type R '-- 1~:~':n" 0 0 0 0 0 0 0 0 0 0 0 0 0 0 Total Length - Bended " Fromos1282 0 0 0 0 0 0 0 0 0 0 0 0 0 0 lhoe11 Total Length - Straight: 963 a Total Length [ml. 2246 Total Weight - Bended 1767 ~ Total Weight - Straight 1196 Total Weight lkgl 2982 ,, Mean Size Imm]· GENERAL WEIGHT kg LI 14.7 I I 2982 I '""""'""' '"""''"-m- '"""""•-OTP- CLIENT: 11 PROJECT IMPLEMENTATION CONSULTANT FILE NAMEITEN BANv£: SCALEI1YL~: STAnJSI Tt.1Hra.y4G: PROJECTl~AN: HANOI PILOT LIGHT METRO LINE Secllon Nhcn -Hanoi Railway station ' CHOEAU Tl/: T1 VAN lHIJC HIEN DlJ AN PIC-TEC-aRR-WIO-JD4-181111-8_2A.D'M3 - Technical Design TIM:N DIJONG sAT£10 TI-II THI Dl~M TP HA NOi eo.n Nh6n- Ga 1-1111 Nl)I ~ I SYSTRAS.A DESIGtEDBYlHltrK£ : FaUIATIKHO BAN v£ : DATEINGAY: TlTlEIT~ BAN v£ : HRB NHUE RIVER CROSSING ·~ A.K A1 31/01/10 VllQT SONG NHUe, ~§ "' 30I04/11 2nd a..ibrrUslcm oftschnlcal daalgn A.K ....... ·"""'"' ~2 •c 25I08/10 u-~ A.K ....... ·"""'"' CHECKEDBYsoAT: Thll-gmuatnatbaalllwl...,ad,cq>lllcl<r--NlplldLDld DECK-SA1-SA1'-SB1-SB1' - REINF - BAR LIST-2 / 2HANOI llETROPOIJTAN RAIL lRANSPORT PROJECT BOARD ~~ " ,.,.,,, UPDATED A.K G.MauriB P.Arraud G. Mauris in whale or in part ar U8lld for anr prupoeewih::utllll priorwrillan BAN M"'-T cA.U - SA1-SA1'-SB1-SB1' -COT TH~P- DANH Ml,IC THANH 1A 31/01/10 Fntlmua A.K .MauriB ·"""'"' BAN O~ AN DllONG BATDO THI HA NQI permission of HRB. •• REVISION "'" DESCRIPTION ...... ..... "'"""" PRO..ECT DIRECTOO.IGIAMEJ0c DU'.AN : CHIEF DESIGNERCHO NH~ TiiltrKi!: : e•nv1 n1y111101111 ~pimp lird~ng duUlrn;il tlrtllt(ft:,rnOllll*' toiy DRAWING NO.IBANv£SO : I2AB SCPADOI ....y NQI DUNG f!CADOI """ "" CllJltGIHrKI: Alain B6chereau P.Ameud ltlin b(I, ml. khOng ~II/ @ng j bing ¥In biln ala HRB. PIC-TEC-GRR-WVO-J04-18501-B 2/
  • 83.
    ~ ~ it i ~ii: 15 ES1 S1 SAS'SA7' SA6' _..........__ REBAR ADJUSTMENT Ell~U CHlNH TliANH COT THi;P =--- ~FORPT CONFLICT 001 reorpr I!! ~ uw .!: F % !I $i !;l 8 uB @) (§) 10N "'0 ~ "''-;; N !!~ cg STARTER BARS :;l: THANH COTTHi;P NHO RA ~ ___s 2x23-016 S O "'"'- c- '7 @,_,_ N 'i N x N DETAILX CHI Tli;:T X SCALE: 1/10 TYLI;: 1110 0 0111 ~-..."'... 036 @) 0 n @ 9~~ ~~N ....,, 9A Ci i:jii, ooo 9A Cl 0 Clo Cl .... .... ·- N .. .......... tJ ~ L.___J @ 8 L.___J €Y 0~;l = =9A " "'C?@, ;:!~ 0 ";'@.N =" =... N N ~· (8) @ - SECTION A-A M~TCATA-A SCALE: 1/20 TY Li;:1120 o----+----+----------------+----+---+----< Q.IENT: CHOflAu 11: o----+----+----------------+----+---+----< 3" 21/11Y11 Upda111d 2A 3004'11 2nd aubml11lon at'lechnlcal dMlgn A. K A . K HRB n ® ~g ·-<;:A .... o= ' 0 ,.,-, o j.~ 0 n 1C ~8110 Upda111d 18 2Ml&'IO UPDATED A . K 1--=--i;;;=""--+-"==--------------+-,."".K"----= =-.;..;..;;;=---1 HANOI METROPOLITAN RAIL TRANSPORT PROJECT BOARD 1A 31m1110 REVISION DATE SLrAOOI Nal.Y Fl'"1 11a» DESCRIPTION NQI DUNGWAfJOI " ·K BAN 011AN allONG sA.TaO THI HA NQI IHIHl!BI HIM! CllllClllBI IOI.! • SA9 S3 SB9 KEY PLAN Ki;: HOACH CHfNH SCALE : 1/200 TYLl;:1/200 8 ~ D n @ !i,_ c;::a .... SA3.--- SB3' 9 ~~ 9Ci ;! I I I I I , - ·II I I I I r' DETAILX ) CHI ni;r x BLISTER TYPE 7 / REr~bRCEMENT SEE DWG. ~?d-Wfe.a~~'if-.104.10650-B PIC-TEC-GRR-WV0-.104-18651-B ENT:I2x20- D20 f[ili REB AR AOJUSTM @l150 ..'.'...'.Y FDR PT CONFLICT PROJECT IMPLEMENTATIONCONSULTANT 11 VAN THl,IC HleNDI,/ AN SYSTRAS.A HCOTEllfOUCHINHTHAN THi;P001 VOi XUNGEl0TPT FILE NAA1ElTtNBAN/£: DESIGNED BYTH1£TK£ : A. K [](§) ~1 L .... CiI :e..N SCALE TYLE: FORMATKHO BAN VE: A1 SA2' SB2' 032 033@ @) gf gj 85' SB6' SB7' SB6' S ' S2 ES2 SA1' SB1' _ _ -' ,___,___, -' A• 'J v ~ 2x20- D12 @-~ - - - - - - - - @.1150 ' i.- - - - I= t r ~ ..,.... -I - - - ._.- - I - - - -'Y' ,-'J I - - - - c-- ~ I - >- - - I - -.__ - - 2x20- 020 @§ ~ @1150 BLISTER TYPE 6 / R0 LOAl 6 - - ~/ I/ REI N ~ORCEMENT SEE DWG. I- - COTTHi;PXEM BAN vi::I - PIC-TEC-GRR-WVO-J04-18652-B ---I - - J ~i-- >- I - -- - >- PIC-TEC-GRR-WVO-J04-18653-B - - - >- i-- -- '-:: - .... .., 1;;;;. ,._. ~~ 014 S L.___) 014 8 L.___J I I OB 8 n SECTION B-B M~T CAT B-B STAlUS TfNH~G : Teclmical Oesign DATENGAY: 31/01/10 SCALE: 1/20 TYLl;:1/20 NOTES: ~~~~~~~~~~~~~~~~~~~~~~ GHICHL.f: 1. REINFORCEMENT Y1ELD STRENGTH: FY=420 MPA. 1. ClldNG El0 CHAY CllA cx:fTTHE'.P :fy""-420 Mpa 2. CONCRETE COVER: C=50 MM. 2. LdPeeTONGe.<oVEc=50 mm 3. FOR PARAPET S"fARTER BARS REFER TO DWG. NO. 3.ElE. XEM THANH COT THe!PCHO'COALANCAN XJNXEM BAN VESO PIC-TEC-GRR-WVO-J00-18803-B TO PIC-TEC-GRR-WVO-J00-18808-B PROJECT CVAN: HANOIPILOTLIGHT METRO LINE Sedian Nhon•HantiRailwayS1alial TIJY£NellONGs>.r ElOlli[THIe1eMTPHANQI ElatnN~n. Ga Hi NOi Tm.E TtNBANVE: NHUE RIVER CROSSING VU'QT SONG NHUI;: CHECKED BYSlll.T: G. Maur1s Thil <Rwi'IDmUll:notbe eithlrlOlrled,<q>ied«otl'lll'Wile NP'Odiacl ln wtdea h P11rt orul8dfor•nr prupmewllhoul:.. prlor'Mltsl parmlllllonot HRB. DECK- SA2'-SB2' - REINF -1/2 BAN W,T cAU . SA2'-SB2' - cOT 11-1i:.P. 1 / 2 PROJECTDIRECTORGIAMaocDI/AN: CHIEF~IGNERCll) NHleMTH1£rK£: ......My_..,.,._.......ng ..... '"""""-"""iHn'-Y ....~ ...- .........~t~ '"""'" "'" """· DRAl'l1NGNO. BANV£SO: Alain B~cheraau P. Amaud PIC-TEC-GRR-WVO-J04-18504-B 3A
  • 84.
    Boe Type l:'ohtal hape Bend Boe Type No ~"fNbo''.~Totol llen th~hapel Bend I Boe Type I 'o Total Shope Bend I No fbor Lengfh No ofbar Lengthmark '"" of mmN No [ode T1pe D1mens1ons Shape "" mark '"" of ""'h No. 9 [ode Type D1mens1ons Shope "" mark '"" of '"'"h No Code Type Dimensions Shape ""size mernO ~•mb Ille memb memb me memb m•mb "" " "" " "" "" " " " " " " o°' D16 1 46 46 3740 00 A=l74a = m DB 1 120 120 630 99 1 A=119 B=4DO 6 o" DB 1 B B 1160 99 2 A=80 B=l51 [=14D D=l15 n002 D12 1 114 114 3560 00 A=l555 = °" 01B 1 40 40 3350 15 1 A=Z011 8=1411 C=115 ~ "" D16 1 12 12 1340 51 2 A=1008=16DC=14l g oo; D14 1 32 32 3660 OD A=JOSO = 032 016 1 20 20 6270 15 1 A=JIJ4 B=Ol l=J1J4 ~ °" D16 1 4 4 1100 21 2 A=490B=Z0ll=43J y ooc D16 1 46 46 3750 00 A=l749 = OB 016 1 20 20 3710 00 A=JJag =000 D14 1 20 20 5410 25 1 A=00l8=603(=515D=515E=4101-·4l0l~ o,; 012 1 40 40 3850 15 1 A=115l B=5iJ [=1703 ~ 1=....- ·~ 002 D14 1 20 20 5265 25 1 A=ODJB=00J[=515D=515E=40ll-•4111~ o;; 012 1 40 40 2050 99 1 A=5JO B=14j l=14J4 ridMEAN aM1"a1=io• 1~ ...-·~ 008 010 1 40 40 1630 15 1 A=113 B=l45 [=1467 ~ o;e 012 1 40 40 1350 15 0 A=693 B=l91 [=013 cMS~ ~ """ D8 1 12 12 1580 99 2 A=199-·l49 B=l51 (=l15 in. "" 010 1 40 40 1350 13 1 A=1115 t::;=i 1=.,. -·~ ~010 D12 1 2 2 1220 99 2 A=193 B=l50 040 08 1 4 4 1130 99 2 A=98 B=lSI [=JlS in.' ·~ in.011 D20 1 40 40 6345 99 2 • c 041 08 1 8 8 1140 99 2 A=llJ B=l51 [=J15 MEAN 1~ ...-·~ ' A=1~4 B=l9l [=1510-,1Jl4 D=l89 E=1514-·17l7 f=1~4 e<l=1l5"a1=71"al=11B"e<4=71""5=1ll" '"""" -011'- '"""""•-OTP- """'"'•-OTP- c c ToJ-al Lengths and Weights Number of members 1 Type T Type R BENDING DIAMETERS (mm) - Lengt-hs of standard hooks Imm) Total Weight Tatal Total Weight Total Diameters 6 8 10 12 14 16 18 20 22 25 28 Diameter Length per unit Weight Length per unit Weight Hooks IDiameters 6 8 10 12 14 16 18 20 22 25 '"1 Ikg/ml lkg) ,,, [kg/ml lkgl [Type 11 36 48 60 72 84 96 108 120 132 150 224 - 0 000 0 6 0.222 Frames 24 32 40 48 56 64 108 120 132 150 224- (Type 2] 8 m 0 395 46.40 nchorage 72 96 120 144 168 192 216 240 264 JOO- Hooks 0 0 0 0 0 0 0 0 0 0 0 [Type 1) 10 119 0.617 73 55 [Type 1) 0 - R @_ Frames 0 0 0 0 0 0 0 0 0 0 12 698 0.868 620.07 Frames 0 0 0 0 0 0 0 0 0 0 0 (Type 2] - [Type 21 14 ll1 1.210 400 05 nchor~ge 12 96 120 144 168 192 216 240 264 300- [Type 1) 16 565 15BO 892.10 8 Frames- BAR DIMENSIONS 0 0 0 0 0 0 0 0 0 0 18 134 2 000 268 00 ITvpe 2] - 20 254 2 470 626.89 - THE DIMENSIONS ARE GIVEN ON THE OUTSIDE FIBER OF THE REBAR ISEE BELOW!- 22 0 2.980 0.00 - THE TOT AL LENGTHS ARE CALCULATED ON THE BASIS OF THE CENTERLINE n(horage- 1150 3766 2004 - METHOD Bl 36 48 60 12 84 96 108 120 132 15025 0 3.850 0.00 [Type 1) - - THE BENDING ANGLES ARE GIVEN IN DEGREES ~ 0 28 0 4.830 000 Frames 0 0 0 0 0 0 0 0 0 0- 0 6310 000 IType 21 32 ll__J E- n(hor<ige 36 48 60 72 84 96 108 120 132 15036 0 7.990 000 ,, [Type 1) - R 40 0 9 860 000 Frames 0 0 0 0 0 0 0 0 0 0- IType 21 ~jType T Type R n(horage 65 65 65 65 65 65 12 80 88 100Total Length - Bended 1276 ,Ji- [Type 1) Total Length - Straight: 0 Frames942 0 0 0 0 0 0 0 0 0 0 0 Total Length lml. 2218 IType 21 ......__ nchor~ge Total Weight - Bended 1763 0 [Type 1) 65 65 65 65 65 65 12 80 88 100 R FramesTotal Weight - Straight 1164 0 0 0 0 0 0 0 0 0 0 Total Weight lkgl ,_, ITvne 2] 2927 Mean Size [mml GENERAL WEIGHT kg )/I 14 6 I I 2927 I '"'"'""' ""'"'"-OTP- ""'"[)o-011'- ~ ' CLIENT: II PROJECT IMPLEMENTATION CONSULTANT FILENMIEITtN BAN v£ : sr.ALEIrtL(: : STATUSTlNHT~: PRO.ECTIDl/ #.! : HANOI PILOT LIGHT METRO LINE Sectkln NOOn - HlllOI Ralway station ~ I CHOEl.Wnr: Tl/ VAA THVC Hll;N DIJ AN PIC-TEC-ORR-WVQ.JIM-1BllllMl_JIA.DWa - Technical Design TU1N WONG sATBO rn1 rnlDlt::M TP HA NOi E>olil1 Nh&i- Ge Hill NOi ~ ~ ~ SYSTRAS.A DESIGNED BYITlll£'r KE: : FORtMTIKHO eANv£ : DATEINGAY: Tm.EITtN BAN v£ : ~ HRB NHUE RIVER CROSSING '~ A.K A1 31/01110 lll1QT SONG NHUo7 ~§ "' "'"'11 2nd submission of lechnlcaldes91 H 3.Maurls ·"'°"'"" !!s 1C ....10 UM•1"d H IG. Maurta ·"'°"'"" CIECKED BYsoAT: Thladr-ingrnJlllnolba-IDar-.d,coplaclor-rapmcilcad DECK - SA2'-SB2' - REINF - BAR LIST - 2 / 2HANOI METROPOUTAN RAIL TRANSPORT PROJECT BOARD q 1B ,...,, UPDATE> ~· jG. Mauria "·"'°"'"" G. Mauris i1 whole ar in part or used for any prl4)Ca wihoU; lh8 priarwrillBn BAN ~T cAU - SA2'.SB2' -COT TH~P- DANH MVC n<ANH - 2 Ii ~ 1A 31/01/10 Fi181 l8al8 ~· 3.Mauria ·"'°"'"" BAN OiiAN DUONG sAT00 Tiii HA N()I permissiondHRB. ! • ""'"" ...... PROJECTDIRECTORIGIAMe0c IX/AN : CHIEFDESIGNERIa-io tt11eM Tiii~ KE: : Bin ve nQ'khOng auqc ph6p ar. dlol'IQ dllCI mQI hlrll tll)c, ml)I phln hay DRA'MNGNO.IBAN v£: SO : I2A~ B REVISION OA" DESCRIPTION ClilEFOFDl!O IDAn bl), mil khOng o!uqc •II' oD!g ~ ~IAln bin all. HRB. PIC-TEC-GRR-WVO-J04-18505-BS(IAOO "" NQI DUNG SO'A 001 THl~ICE "" Cl(JNIGlllETE Alain Bllchereau P.Amaud
  • 85.
    ~ ~ it i ~ii: 15 ES1 S1 SA8'SA7' SAS' ~NT EIEU CHINH ™ANH COT THEP FOR PT CONFLICT =--- EOI VOi XUNGEQT PT ~ I!! ~ uw .!: F % !I $i !;l 8 uB 8 @) 10N "'o SJ~ '-;; N .,.,, STARTER BARS ~i, THANH COT TH!l:P NHO RA<;:: ---s 2x23 -D16 ®O DETAILX CHITl~TX SCALE: 1110 T'i'LS: 1/10 .,,0111 ~-0 ..."'N n @ 9s 9 0 [] @ ~~ ooo l:jl@. Clo 0 ·- N ...... ~ L__J 8 @ L__J ~;l l:jl@. 0 N "... 0 = = ""'Sl@. ;::!~ ";'@.. SECTION A-A MAT CAT A-A SCALE: 1/20 ti' Li;:1120 - o----+----+----------------+----....___....____. Q.IENT: o----+----+----------------+----....___....____. CHOflAuru: 3" 21/11Y11 2A 3004'11 HRBUpda111d A. K 2nd aubml11lon at'lechnlcal dMlgn A . K 1C ~8110 n ® ~g ·-c;::s .... 18 2Ml&'IO Upda111d A. K UPDATED A. K HANOI METROPOLITAN RAIL TRANSPORT PROJECT BOARD 1----+---+-F-lm- -..--------------+-,.-.K---4---4------1 BAN DI/ANEWNG sA.rEOTHI llANQI1A 31m1110 REVISION DATE SLrAOOI Nal.Y DESCRIPTION NQI DUNGsLrAfJOo IHIHl!BI' HIM! CllllClllBI' IOI.! SA9 S3 SB9 KEY PLAN K~ HO~CH CHiNH SCALE : 1/200 T'i'LS:1/200 8 n @ SA3 SB3 9 ~ !iD ,_ c;::s .... .,.o Ci~ ...;! I I I I I I I I I I - 11 I I I I I (~ [CJ ~ - ~ DETAILX) .t ~~ rr- CHITIETX v BLISTER lYPE 7 1--- / ~ L-- ROLOA17 ~ L-- -REINFORCEMENT SEE DWG. COT THEP XEM BAN v£ PIC-TEC-GRR-WVO.J04-18650-B PIC-TEC-GRR-WVO.J04-18651-B SA2 SB2 032 033@ @) 5[ gj I ,----,-----,-l,- r:.;; ~ '- - L-- L-- ,_ '-L-- I I - L-- '- L- ,_ ----,- _ _ _ -- f- 1--- - f-- - r- - -1--- ' S2 ES2 SA1 SB1 2x20 - D12 [6.1150 § 2x20- 020 @§@1150 - BLISTER lYPE 6 / R0 LOAl 6 ENT~ - [](§) '- ,_2x20-D20 foli REBAR AOJUSTM @l150 ..'.'...'.Y FOR PT CDNFLIC - L- ~I/ I/ REINFORCEME COT THEP XEM BAN PIC-TEC-GRR- NT SEE DWG. vE WVO.J04-18852-B •PROJECT IMPLEMENTATION CONSULTANT 11 VAN THl,IC HleN DI,/ AN SYSTRAS.A PROJECTDIRECTOR GIAMaoc01,1AN: Alain B~cheraau THCOT il:P TPT E>IEU CHINH THAN 001 WI XUNG ElO FILE NAA1ElTtNBAN/£: DESIGNED BY TH1£TK£ : A. K CHECKED BYSlll.T: G. Maur1s CHIEF~IGNERCll) NHleMTH1£rK£: P. Amaud - L-- L-- '- - ~L-- '-- 1--- -- c-- J ~1 --:::- L-- - c-- '- PIC-TEC-GRR-k '-:: L- - ,__ - -'-- ....., I 1.- ~ -" L-<'. ~ c 014 s WVO.J04-18653-B 014 8.... c I :e y DB n..... -SECTION BB MAT CAT B-B 8 SCALETYLE: FORMATKHO BAN VE: A1 STAlUS TfNH~G : Teclmical Oesign DATENGAY: 31/01110 Thil <Rwi'IDmUll:notbe eithlrlOlrled,<q>ied«otl'lll'Wile NP'Odiacl ln wtdea h P11rt orul8dfor•nr prupmewllhoul:.. prlor'Mltsl parmlllllonot HRB. ......My_..,.,._.......ng ..... ..,.. .... _m(llpMnt.y .... ~ ... - .........~t~ ,,.,, ...... HRB. SCALE : 1120 ti' u;:1120 NOTES: ~~~~~~~~~~~~~~~~~~~~~~ GHI CHL.f: 1. REINFORCEMENT YIELD STRENGTH: FY=420 MPA. 1. ClldNG El0 CHAY CllA cx:fTTHE'.P :fy--420 Mpa 2. CONCRETE COVER: C=50 MM. 2. Ld l' BE TONG M OvEc=50 mm 3. FOR PARAPET S"fARTER BARS REFER TO DWG. NO. 3. EE. XEM THANHCOT TH!l:P CHO' COA LAN CAN XJNXEM BAN v£SO PIC-TEC-GRR-WVO-J00-18803-B TO PIC-TEC-GRR-WVO.J00-18808-B PROJECT CVAN: HANOI PILOTLIGHT METRO LINE Sedion Nhon•HantiRailwayS1atial TLJYEN flOONG sATEJ0TH[THIfll~M TPHANQI Elatn N~n · Ga Hi NOi Tm.ETtNBANVE: NHUE RIVER CROSSING VU'QT SONG NHUI;: DECK- SA2-SB2 - REINF -1/2 BAN ~T cAU - SA2-SB2 ·COT THi:P - 1 / 2 DRAl'l1NGNO. BANV£SO: PIC-TEC-GRR-WVO-J04-18508-B 3A
  • 86.
    Boe Type l:'ohtal hape Bend Boe Type No ~"fNbo''.~Totol llen th~hapel Bend I Boe Type I 'o Total Shope Bend I No fbor Lengfh No ofbar Lengthmark '"" of mmN No [ode T1pe D1mens1ons Shape "" mark '"" of ""'h No. 9 [ode Type D1mens1ons Shope "" mark '"" of '"'"h No Code Type Dimensions Shape ""size mernO ~•mb Ille memb memb me memb m•mb "" " "" " "" "" " " " " " " o°' D16 1 46 46 3740 00 A=l74a = m DB 1 120 120 630 99 1 A=119 B=4DO 6 o" DB 1 B B 1160 99 2 A=80 B=l51 [=14D D=l15 n002 D12 1 114 114 3560 00 A=l555 = °" 01B 1 40 40 3350 15 1 A=Z011 8=1411 C=115 ~ "" D16 1 12 12 1340 51 2 A=1008=16DC=14l g oo; D14 1 32 32 3660 OD A=JOSO = 032 016 1 20 20 6270 15 1 A=JIJ4 B=Ol l=J1J4 ~ °" D16 1 4 4 1100 21 2 A=490B=Z0ll=43J y ooc D16 1 46 46 3750 00 A=l749 = OB 016 1 20 20 3710 00 A=JJag =000 D14 1 20 20 5410 25 1 A=00l8=603(=515D=515E=4101-·4l0l~ o,; 012 1 40 40 3850 15 1 A=115l B=5iJ [=1703 ~ 1=....- ·~ 002 D14 1 20 20 5265 25 1 A=ODJB=00J[=515D=515E=40ll-•4111~ o;; 012 1 40 40 2050 99 1 A=5JO B=14j l=14J4 ridMEAN aM1"a1=io• 1~ ...-·~ 008 010 1 40 40 1630 15 1 A=113 B=l45 [=1467 ~ o;e 012 1 40 40 1350 15 0 A=69l B=l91 [=013 cMS~ ~ """ D8 1 12 12 1580 99 2 A=199-·l49 B=l51 (=l15 in. "" 010 1 40 40 1350 13 1 A=1115 t::;=i 1=.,. -·~ ·~011 D20 1 40 40 6345 99 2 040 08 1 4 4 1130 99 2 Ao98 BolSI [oJlS in.MEAN 1~ ...- ·~ A=1~4 B=l9J [=1510-•1Jl4 D=ll9 E=1rn--•17l7 F=104 041 08 1 8 8 1140 99 2 A=llJ B=l51 [=J15 in.«1=1ll'a1=12'«l=1aB•ot4=12'"5=1ll• '"""" -011'- '"""""•-OTP- """'"'•-OTP- c c ToJ-al Lengths and Weights Number of members 1 Type T Type R BENDING DIAMETERS (mm) - Lengt-hs of standard hooks Imm) Total Weight Tatal Total Weight Total Diameters 6 8 10 12 14 16 18 20 22 25 28 Diameter Length per unit Weight Length per unit Weight Hooks IDiameters 6 8 10 12 14 16 18 20 22 25 '"1 Ikg/ml lkg) ,,, [kg/ml lkgl [Type 11 36 48 60 12 84 96 108 120 132 150 224 - 0 000 0 6 0.222 Frames 24 32 40 48 56 64 108 120 132 150 224- (Type 2] 8 m 0 395 46.40 nchorage 72 96 120 144 168 192 216 240 264 JOO- Hooks 0 0 0 0 0 0 0 0 0 0 0 [Type 1) 10 119 0.617 73 55 [Type 1) 0 - R @_ Frames 0 0 0 0 0 0 0 0 0 0 12 696 0.868 617.91 Frames 0 0 0 0 0 0 0 0 0 0 0 (Type 2] - [Type 21 14 ll1 1.210 400 05 nchorage 12 96 120 144 168 192 216 240 264 300- [Type 1) 16 565 1SBO 892.10 R Frames- BAR DIMENSIONS 0 0 0 0 0 0 0 0 0 0 18 134 2 000 268 00 ITvpe 2] - 20 254 2 470 626.89 - THE DIMENSIONS ARE GIVEN DN THE OUTSIDE FIBER OF THE REBAR ISEE BELOW!- 22 0 2.980 0.00 - THE TOT AL LENGTHS ARE CALCULATED ON THE BASIS OF THE CENTERLINE n(horage- 1150 3766 2004 - METHOD Bl 36 48 60 12 84 96 108 120 132 15025 0 3.850 0.00 (Type 1) - - THE BENDING ANGLES ARE GIVEN IN DEGREES ~ 0 28 0 4.830 000 Frames 0 0 0 0 0 0 0 0 0 0- 0 6310 000 IType 21 32 ll__J E- n(hor<ige 36 48 60 12 84 96 108 120 132 15036 0 7.990 000 ,, (Type 1) - R 40 0 9 860 000 Frames 0 0 0 0 0 0 0 0 0 0- IType 21 ~jType T Type R n(horage 65 65 65 65 65 65 12 80 88 100Total Length - Bended 1274 ,Ji- (Type 1) Total Length - Straight: 0 Frames942 0 0 0 0 0 0 0 0 0 0 0 Total Length lml. 2216 IType 21 ......__ nchor~ge Total Weight - Bended 1761 0 (Type 1) 65 65 65 65 65 65 12 80 88 100 R FramesTotal Weight - Straight 1164 0 0 0 0 0 0 0 0 0 0 Total Weight lkg) ,_, ITvne 2] 2925 Mean Size Imm) GENERAL WEIGHT kg )/I 14 6 I I 2925 I '"'"'""' ""'"'"-OTP- ""'"[)o-011'- ~ ' CLIENT: II PROJECT IMPLEMENTATION CONSULTANT FILENMIEITtN BAN v£ : sr.ALEIrtL(: : STATUSTlNHT~: PRO.ECTIDl/ #.! : HANOI PILOT LIGHT METRO LINE Sectkln NOOn - HlllOI Ralway station ~ I CHOEl.Wnr: Tl/ VAA THVC Hll;N DIJ AN PIC-TEC-ORR-WVQ.JIM-1BllJl.8_2".DWa - Technical Design TU1N WONG sATBO rn1 rnlDlt::M TP HA NOi E>olil1 Nh&i- Ge Hill NOi ~ ~ ~ SYSTRAS.A DESIGNED BYITlll£'rKE: : FORtMTIKHO eANv£ : DATEINGAY: Tm.EITtN BAN v£ : ~ HRB NHUE RIVER CROSSING '~ A.K A1 31/01110 lll1QT SONG NHUo7 ~§ "' "'"'11 2nd submission of lechnlcaldes91 H 3.Maurls ·"'°"'"" !!s 1C ....10 UM•1"d H IG. Maurta ·"'°"'"" CIECKED BYsoAT: Thladr-ingrnJlllnolba-IDar-.d,coplacl<r-rapmcilcad DECK - SA2-SB2 - REINF - BAR LIST - 2 I 2HANOI METROPOUTAN RAIL TRANSPORT PROJECT BOARD q 1B ,...,, UPDATE> ~· jG. Mauria "·"'°"'"" G. Mauris i1 whole ar in part <r used fOr any prl4)Ca wihoU; lh8 priarwrillBn BAN ~T cAU - SA2-SB2 -COT TH~P- DANH Ml,IC TI-tANH - 2 / ~ 1A 31/01/10 Fi181 l8al8 ~· 3.Mauria ·"'°"'"" BAN OiiAN DUONG sAT00 Tiii HA N()I permissiondHRB. ! • ""'"" ...... PROJECTDIRECTORIGIAMe0c IX/AN : CHIEFDESIGNERIa-io tt11eM Tiii~ KE: : Bin ve nQ'khOng auqc ph6p ar. dlol'IQ dllCI mQI hlrll tll)c, ml)I phln hay DRA'MNGNO.IBAN v£: SO : I2A~ B REVISION OA" DESCRIPTION ClilEFOFDl!O IDAn bl), mil khOng o!uqc •II' oD!g ~ ~IAln bin all. HRB. PIC-TEC-GRR-WVO-J04-18509-BS(IAOO "" NQI DUNG SO'A 001 THl~ICE "" Cl(JNIGlllETE Alain Bllchereau P.Amaud
  • 87.
    ~ 9! ~ iii t i ~ii: 15 ES1 S1 SAS'SA7' SA6' ------REBAR ADJUSTMENT EllE.U CHINH THANH c0TTHeP FOR PT CONFLICT =--- ElOl~ElOTPT ~ n © I!! ~ uw .!: F % !I $i !;l 8 uB ®' 8 PARAPET Ct ID&n CiLAN CAN --9&STARTER BARS a THANH COT TH!l:P NHO RA c;:: Q 2x20-D12 ~e aa1so ® "'0 --8~ ---s ®0 "'~-<-- '7@., ...t- N",i "";} ~ f I I ~ l I t~ t r ] I ~ l l @ 2x2-016 c:: _ L _ _ _ .I..__ _ _ ~ 2x25-D16 @1150 f ' - ....__ 10 f - ~ DETAILX CHI Tli;:T X SCALE: 1110 Ti' LS: 1110 8 ......,, ~·.......... ~ 9 0 C>"'O@ d, I f f I I I Li 0 n @)9.. ~~ .....,, ~- ~g ~-0 ·-N .... 0 N '-------J L___J 8 =-.ten 9~ =N @ =-.ten 9§=N ~I @ -SECTION A-A MAT CAT A-A SCALE: 1!20 Ti'LS:1/20 o----+----+----------------+----...___...____. Q.IENT: o----+----+----------------+----...___...____. CHOflAuru: 3B 12J051'12 Up Dalod A. K 3" 21/11Y11 2A 3004'11 HRBUpda111d A.K 2nd aubml11lon at'lechnlcal dMlgn A . K 1C ~8110 @ ....cg,_ c;::•... 18 2Ml&f'IO Upda1ad A.K UPDATED A. K HANOI METROPOLITAN RAIL TRANSPORT PROJECT BOARD 1----+---+-F-lm--..--------------+,,-.K--~--~----1 BAN DI/AN llWNG IA.TllOTHI llANQI1A 31m1110 REVISION DATE SLrAOOI Nal.Y DESCRIPTION NQI DUNGWAfJOI IHIHl!BI' HIM! CllllClllBI' IOI.! • SA9 S3 SB9 KEY PLAN K~ HO~CH cHrNH SCALE : 11200 TY LS:1/200 ~~2x=2~0-=0~18'°-- rQ1i. @1150 '.'...','.) PROJECT IMPLEMENTATION CONSULTANT 11 VAN THl,IC HleN DI,/ AN SYSTRAS.A PROJECTDIRECTORGIAMaocDI/AN: Alain B~cheraau REBAR ADJUSTMENT EllE.U CHINH THANH COTTHeP FOR PT CONFLICT ~ 001 VOi XUNG ElOT PT FILE NAA1ElTtNBAN/£: PIC-TEC-GRlt-Wv'OJD4-1151M_lB.DWG DESIGNED BYTH1£TK£: A. K CHECKED BYSlll.T: G. Maur1s CHIEF ~IGNERCll) NHleMlll1£rK£: P. Amaud SA4' ___ SB4' 0 ~~ 9i, !! , 1' J_ DETAILX ) CHI Tlil:TX ~ @ gl ...5 I Ct ....,, ;tii, 0 1 -E7 SCALE TYLE: FORMATKHO BAN VE: A1 SA3' SB3' @) @)032 033 ;;f ;;f SAX SB2' :;;:::::; , !,.'- ~ L- cc; 2x20 012 @-@l150 M0-018 @§@l150 BLISTER TYPE 5 '-- .__ ~ i/lilJ.m>~CEMENTSEE DWG. - .__ - COTTHeP XEMBAN ve,_ ~ ~ '- PIC-TEC-GRR-WV0-.104-18654-BL...- - ,_ - c- ~ I/,_ ,_ ,_ ,_ ,_ -,_ - L- '- ,.+ ~ PIC-TEC-GRR-WV0-.104-18655-B..... ri 11L- '-- ~ Jo I--' 014 <§'-------J I 014 @'-------J OB SECTION B-B 8 n MAT CAT B-B STAlUS TfNH~G : Teclmical Oesign DAlENGAY: 31/01110 SCALE: 1!20 TY LS:1/20 NOTES: ~~~~~~~~~~~~~~~~~~~~~~ GHICHL.f: 1. REINFORCEMENT YIELD STRENGTH: FY=420 MPA. 1. ClldNG El0 CHAY CllA cx:fTTHE'.P :fy--420 Mpa 2. CONCRETE COVER: C=50 MM. 2. Ld PBil: TONG e.<ov£c=50 mm 3. FOR PARAPET S"fARTER BARS REFER TO DWG. NO. 3.ElE. XEM THANH COT TH!l:P CHO'COA LAN CAN XJN XEM BAN VESO PIC-TEC-GRR-WVO-J00-18803-B TO PIC-TEC-GRR-WVO-J00-18808-B PROJECT CVAN: HANOI PILOTLIGHT METRO LINE Sedion Nhon•HantiRailway S1alial TIJY£NflOONG sATElOllilTHIfll~M 1l'HA NQI ElatnN~n · Ga Hi NOi Tm.ETtNBANVE: NHUE RIVER CROSSING VU'QT SONG NHUI;: Thil <Rwi'ID mUll:notbe eithlrlOlrled,<q>ied«otl'lll'Wile NP'Odiacl ln wtdeah P11rtorul8dfor•nr prupmewllhoul:.. prlor'Mltsl parmlllllonot HRB. DECK- SA3'-SB3' - REINF -1/2 BAN W,T cAU. SA3'-SB3' - cOT Tl-li:.P. 1/ 2 DRAl'l1NGNO. BANV£SO: PIC-TEC-GRR-WVO-J04-18512-B 38 ......My_..,.,._......."11 ..... ..,.. .... _m(llpMnt.y ....~ ...- .........~t~,,.,,..., ...HRB.
  • 88.
    Boe Type NofNb~·, Total Shape Bend Boe Type No." 1~fNbo;'.~Total IL ~h~hapeIBend Boe Type No. lifN~;, Total Shape Bend mark ;od of "'"h No Length Code Type Dimensio~s Shape R"' mark ;od of inmh No eng Code Type Dimensions Shope R"' mar< ;od of ioeach No Length Code Type Dimensions Shape R"' "" momb mmb size m.mb momb size memb m•mb " " '' " " " '' " " " " " 001 B1B I " " 3740 BB A=rn-o = on CB I 120 120 980 " 1 A=119 B=J00-•401 b 001 CB I B B 1160 " 1 A=B6 B=l51 [=140 D=l15 nMEAN 001 012 I 110 110 3560 BB AdSIS = °" "'" I 4B 40 3280 fB 1 A=l490B=llllt=!D1 ~ "' Dl6 I 12 12 1340 51 1 A=160 8=160 [=14l g oo; 014 I lB lB 3650 DD Ad65l = m Dl6 I 10 10 6270 15 1 A=ll34B=il[=l1l4 ~ "" Dl6 I 4 4 1100 11 1 A=490 B=10l [=48l y 004 Dl6 I BO BO 3750 DO A=ll49 = m Dl6 I 10 10 3710 DD A=l709 =000 D14 I 10 10 5505 2B I A=60lB=60lt=515D=515E=4l89-,4lDl~ HEAN m Dl2 f 4D 40 3850 15 1 A=ll<;JB=>B1C=11Dl ~ "' D14 I 1D 10 5390 2B I A=00lB=60l[=S1SD=S1SE=4l89-·4112~ rn Dl2 I 4D 40 2050 99 1 A=Sl0B=l49[=14l4 Gd-HEAN a1=91·ai=10· ODO DID I 40 4B 1570 19 I Ao17l Sol45 [01349-•l61 ~ OlB D11 I 4D 40 1350 15 1 Ao69JBol91[oiJJ ~HEAN rM51 009 D8 I 11 11 1480 99 1 A~299-·149 B~lSI t~J15 n. m D1D I 4D 40 1350 13 1 A~1215 t=::=iHEAN OIO Dl2 I 4 4 1070 99 1 A~l1Q BdQD ~ 040 DB I 4 4 1130 99 2 A~9B B~Jl1 Cdl5 n.' Off DIB I 40 40 5960 99 1 ' 041 DB I 8 B 1140 99 2 Ao1Q1 Bol51 [0315 n.HEAN AolBJ Bo1415-•151J [o341-•l!1 Do1'1l-•151l oJ45-•l9BfolBJ ,.1~1J1• o.l~11° '"'Mi8° o.t.~11° o.S~1Jl0 ""'""" OTP- '""""•-OT>- A.-ooCA[)o-011'- c c Total Lengths and Weights Number of members I Type T Type R BENDING DIAMETERS Imm] - Diameters B 8 ID 12 14 16 18 10 11 19 1B f1 lB 40 Lengths of standard hooks Imm)Tot~l Weight Total Total Weight Total Hoo•sDiameter Length per unit Weight Length per unit Weight lB 48 00 11 84 % !08 120 111 ''° 114 190 188 l10 ,,, (kg/ml (kg) ,,, lkg/m) [kg] 0 IType11 10,.motors I o I e I 10 I 12 I 14 I 10 I 18 I 10 I 21 I 2s I 28 I 12 I io I 40 - F"mes 14 11 40 48 90 " !08 '10 111 190 114 190 188 l10 B 0 0.222 0.00 IType21 - Hoo•• 0 0 0 0 0 0 0 0 0 0 0 0 0 0 1~~;:~·8 110 0395 43.56 IType11 11 % '" '" f08 m 1f0 140 "' '°° m m rn '"°- 8 0 ID ff] 0617 72 07 Fromes 0 D D 0 0 0 0 0 0 0 0 0 D D @_ Fram.. 11 % '" '" "" m 1f0 140 "' '°° m 98' rn 480- ITvoe 2) 1Type11 11 BBB O.B8B 609.06 1~~;:~· 0 0 0 0 0 0 0 0 0 0 0 0 0 0- 14 149 1210 422.65 8 - Frames 0 0 0 0 0 0 0 0 0 0 0 0 0 0 16 989 1.580 89216 iT"'e11 - BAR DIMENSIONSfB l7D 2000 739 20 - D ODD 1~~;:~·10 2 410 - THE DIMENSIONS ARE GIVEN ON THE OUTSIDE FIBER OF THE REBAR (SEE BELOW) " 48 00 11 " % '°" "° m ''° '°" m 1f0 140 - ff 0 11 8 2 980 880 -THE TOTAL LENGTHS ARE CALCULATED ON THE BASIS OF THE CENTERLINE Frames " 48 00 11 " % '°" "° m ''° '°" m 1f0 140- 1Type11 19 8 3 BSO D08 [ISO 3766:2004 - METHOD Bl - - THE BENDING ANGLES ARE GIVEN IN DEGREES - 1~~;:~· 0 0 0 0 0 0 0 0 0 0 0 0 0 0 18 0 4 830 DDO 8 - Frames 0 0 0 0 0 0 0 0 0 0 0 0 0 0 11 0 6.310 0.00 rl____1 ' iT'"e11 - lB 0 7 990 0.00 ,,- 4D 0 9.860 0.00 l'nchorage ;; ;; ;; ;; ;; ;; 11 00 " '" m '" 144 ,00 - ;t- 0 1Type1) ~j Frames ;; ;; ;; ;; ;; ;; 11 00 " '" m "" 144 ''°ITvpe11 Type T Type R '-- l'nchorage 0 0 0 0 0 0 0 0 0 0 0 0 0 01Type11 Total Length - Bended: 8 Frame>12SS 0 0 0 0 0 0 0 0 0 0 0 0 0 0 ITvnell Total Length - Straight 941 "Total Length lml 2197 Toto! Weight - Bended 1610 " Total Weight - Straight 1169 Total Weight (kgl: 2779 ,, Mean Size Imm] GENERAL WEIGHT kg )/I 14 l I I 2779 I '"""Ml•DTP •~.o.•• -Ill•- "'"'"[)o-011'- CLIENT: 11 PROJECT IMPLEMENTATION CONSULTANT FILE NAMEITtN BAN v£ : SCALEITYLe: STATUS TfNHTR6NG: PROJECTIDIJAN : HANOI PILOT LIGHT METRO LINE Sedian Nhon •Hanci RailwayStation • a-io E>Au ru: nrvAN THl,fC Hli;:N DI/ AN PIC-TEC-GRR-ll'No.ID4-1851:Hl_llADWG - Technical Design Tuv£N SOONG sAT E>0 THI THI -E>li:M TP HA N()I Elofn N~n - Ga Hil NOi • SYSTRAS.A u "' 12/0D'12 Upo..d A.K 3.Maurls ."'"' HRB DESIGNED BY THltr K£ : FORMATKHO BAN ve: DATEINGAY: TTTlEITtN BANVE: NHUE RIVER CROSSING 2A ''"""' 2nd aubmllalan ar lectmlcal daalgn A.K ].Meurls ·-' A.K A1 31/01/10 WQT SONG NHUe ~~ 1C ""'"" """"'"' A.K G.Meur1s ·-' CHECKEDBYsoAT: This d'awilg must not be eilhlr IDMed, o:ipi!lcl orOlharwiae rep'Ocluoed DECK - SA3'-SB3" - REINF - BAR LIST - 2 / 2.s ,. ""'"" UPDATE9 A.K ~.Maurls P.Amaud HANOI ME'TROPOUTAN RAIL TRANSPORT PROJECT BOARD G. Maurls In - er h pmrt ar uucl for •nr prupmaWlhoullho prkrwrlllln •• BAN·~ AN oU'ONo sAroO THI HANQI pennllillon ol HRB. BAN ~T cAU - SA3'-SB3' - COT lHi:_P - DANH MVC THANH - 2 I ~ H 1A 31/01/10 Flllll lssua A.K 3.Maurls ·-'REVISION """ DESCRIPTION -· ..,.,. (Hl'CflE!QI PROJECTDIRECTORIGINAeocDIJ AN : CHIEF CESIGNERCll) NHla,lTHl£'TK£ : Mn vii My kh!lng 4JVC ~RI) d,lng - mol h"rlh lh)c, m(ll phln hrly DR.WING NO.IBANVESO : I3An SO'AElOI ""y NOi DUNG sCrA.ElOI m• ..T ailrtil;Mllil~~ Alain B~chereau P.Amaud kllln ~ mll kh!lng41VC..,Mngf'blngvllnbllncilll HRB. PIC-TEC-GRR-WVO-J04-18513-B
  • 89.
    ~ 9! :l: iii t i ~ii: 15 ES1 S1 SAB'SA7' SAS' =--- 01 .,o LAN CAN c!!! STARTER BARS cl.& niANH COT THE.P NHO RA';: N 0 -----REBAR ADJUSTMENT EJliW CHINH niANH COTTH!l:P FOR PT CONFLICT £>01 VO'I XUNG E>OT PT -~ @ =_,"' ~@, SA9 S3 SB9 KEY PLAN Ki; HO~CH CH[NH SCALE : 1/200 TI'Ll;:1/200 REB AR AD JUSTMENT 2x20-018 Q £>1eucHINHTHANHCOTTHeP [W150 ~ FOR PT CONFLIC T '.'1 £>01 VOi XUNG £>0T PT ---s 2x23- D16 [W150 ~~~;:;;~~~~~;;;;;;;;~~N~~~~~::;;;;;;:;;;;;;;;~~~~~;;;;r=1~~/-_r----0_16_s ~~- I!! ~ uw .!: F % !I $i !;l 8 uB ®0 ~~ '7@,__, _ N~ N x ~ ( ,, ' ( ' ( ~ ' I :i-- L--J ....- t~ fu 1 ~ ~ Ii l,j @> 2x2-016 c:: _ ,,______ ~ -- ~~~ ~ - - ~· DETAILX CHI Tli;:T X SCALE: 1110 TI'LI;: 1/10 ~I8 - ( ( -U_ o----+----+----------------+----...,___...,____. Q.IENT: o----+----+----------------+----...,___...,____. CHOflAuru: 3B 12J051'12 Up Dalod A. K 3" 21/11Y11 Upda111d A.K 2A 3(WU11 2nd aubml11lon at'lechnlcal dMlgn A . K 1C ~8110 $ =o= '=~o ,,~ __, 113, 0SECTION A-A MAT CATA-A n SCALE: 1120 ti' Li;:1120 HRB 18 2MIBl10 Upda111d A. K UPDATED A. K HANOI METROPOLITAN RAIL TRANSPORT PROJECT BOARD 1----+--+-F-lm--..--------------+,.-_K---4---4-----1 BAN DI/AN llWNG IA.TllOTHI llANQI1A 31m1110 REVISION DATE SLrAOOI Nal.Y DESCRIPTION NQI DUNGWAfJOI IHIHl!BI' HIM! CllllClllBI' IOI.! •PROJECT IMPLEMENTATION CONSULTANT 11 VAN THl,IC HleN DI,/ AN SYSTRAS.A PROJECTDIRECTORGIAMaocDI/AN: Alain B~cheraau FILE NAA1ElTtNBAN/£: PIC-TEC-GRlt-Wv'OJD4-1151&B_lB.DWG DESIGNED BYTH1£TK£ : A. K CHECKED BYSlll.T: G. Maur1s CHIEF ~IGNERCll) NHleMlll1£rK£: P. Amaud SA4 SB4 ~~ 9• ~ , ,_ ,~ DETAILX ) L c.- CHI n£Tx ~ @ E;I ~ -i 15I I!!..N SCALE TYLE: FORMATKHO BAN VE: A1 SA3 SB3 @) @032 033 ~1 ~1 SA2 SB2 _ _ _ _ ~ . _ , , ~ I- ' ,___ L- -'- ,_ -L- '- - L- - L- -,_ - J'- ,_ l.- ,_ ,___ - l- -:: -!;'.: p'- ~ -~ I ,___ Q ~ I/1 ~Pl I-<'-"' 2x20- 012 @@150 - M0- 018 @§@150 BUSTER TYPE 5 I/ ~~b~CEMENTSEEDWG. COT THE.P XEM BAN /£ 0-J04-18654-BPIC-TEC-GRR-WV PIC-TEC-GRR-WV0-J04-18655-B 014 s 014 @ SECTION 8-8 § n MAT CAT B-B STAlUS TfNH~G : SCALE: 1120 rtu;:1120 NOTES: ~~~~~~~~~~~~~~~~~~~~~~ GHI CHiJ: 1. REINFORCEMENT YIELD STRENGTH: FY=420 MPA. 1. ClldNG £>0 CHAY CllA cx:fTTHE'.P :fy--420 Mpa 2. CONCRETE COVER: C=50 MM. 2. Ld PeeTONG e.<ov£c=50 mm 3. FOR PARAPET s-rARTER BARS REFER TO DWG. NO. 3. £>E. XEM THANH COT THe!P CHO'COA LAN CAN XJN XEM BAN /£SO PIC·TEC-ORR·WVO-J00·18803-B TO PIC·TEC-GRR·WVO-J00-1880S.-B Teclmical Oesign PROJECT CVAN: HANOI PILOTLIGHT METRO LINE Sedion Nhon•HantiRailway S1alial TIJY£NflOONG sATElOTHITHIfll~M 1l'HA NQI Elatn N~n · Ga Hi NOi DAlENGAY: 31f01f10 mtETtNBANVE: NHUE RIVER CROSSING VU'QT SONG NHUI;: Thil <Rwi'ID mUll:notbe eithlrlOlrled,<q>ied«otl'lll'Wile NP'Odiacl ln wtdeah P11rtorul8dfor•nr prupmewllhoul:.. prlor'Mltsl parmlllllonot HRB. DECK- SA3-SB3 - REINF -1/2 BAN ~T cAU - SA3-SB3 ·COT THi:P - 1 / 2 ......My_..,.,._......."11 ..... ..,.. .... _m(llpMnt.y ....~ ...- .........~t~'"""'""'""""· DRAl'l1NGNO. BANV£SO: PIC-TEC-GRR-WVO-J04-18516-B 38
  • 90.
    Boe Type NofNb~·, Total Shape Bend Boe Type No." 1~fNbo;'.~Total IL ~h~hapeIBend Boe Type No. lifN~;, Total Shape Bend mark ;od of "'"h No Length Code Type Dimensio~s Shape R"' mark ;od of inmh No eng Code Type Dimensions Shope R"' mar< ;od of ioeach No Length Code Type Dimensions Shape R"' "" momb mmb size m.mb momb size memb m•mb " " '' " " " '' " " " " " 001 B1B I 4B 4B 3740 BB A=rn-o = on CB I 120 120 980 " 1 A=119 B=J00-•401 b 001 CB I B B 1160 " 1 A=B6 B=l51 [=140 D=l15 nMEAN 001 012 I 110 110 3550 BB AdSIO = °" "'" I 4B 40 3280 fB 1 A=l490B=llllt=!D1 ~ "' Dl6 I 12 12 1340 51 1 A=160 8=160 [=14l g oo; 014 I lB lB 3650 DD Ad65l = m Dl6 I 10 10 6270 15 1 A=ll34B=il[=l1l4 ~ "" Dl6 I 4 4 1100 11 1 A=490 B=10l [=48l y 004 Dl6 I 4B 4B 3750 DO A=ll49 = m Dl6 I 10 10 3710 DD A=l709 =000 D14 I 10 10 5505 2B I A=60lB=60lt=515D=515E=4l89-,4lDl~ HEAN m Dl2 f 4D 40 3850 15 1 A=1012B=565C=IJ!I ~ "' D14 I 1D 10 5390 2B I A=00lB=60l[=S1SD=S1SE=4l89-·4112~ rn Dl2 I 4D 40 2050 99 1 A=Sl0B=l49[=14l4 Gd-HEAN a1=91·ai=10· ODO DID I 40 4B 1570 19 I Ao17l Sol45 [01349-•l61 ~ OlB D11 I 4D 40 1350 15 1 Ao69JBol91[oiJJ ~HEAN rM51 009 D8 I 11 11 1480 99 1 A~299-·149 B~lSI t~JlS n. m D1D I 4D 40 1350 13 1 A~1215 t=::=iHEAN OIO Dl2 I 4 4 1070 99 1 A~l1Q BdQD ~ 040 DB I 4 4 1130 99 2 A~9B B~Jl1 Cdl5 n.• Off DIB I 40 40 5960 99 1 ' 041 DB I 8 B 1140 99 2 Ao1Q1 Bol51 [0315 n.HEAN AolBJ Bo1415-•151J [0341-•l!l Do1'1l-•151l oJ45-•l9BfolBJ ,.1~1J1• "'2~11° <l'Mi8° o.4~11° o.S~1Jl0 ""'""" OTP- '""""•-OT>- A.-ooCA[)o-011'- c c Total Lengths and Weights Number of members I Type T Type R BENDING DIAMETERS Imm] - Diameters B 8 ID 12 14 16 18 10 11 19 1B f1 lB 40 Lengths of standard hooks Imm)Tot~l Weight Total Tot~l Weight Total Hoo•sDiameter Length per unit Weight Length per unit Weight lB 48 00 11 84 % !08 120 111 ''° 114 190 188 l10 ,,, (kg/ml (kg) ,,, lkg/m) [kg] 0 IType11 10,.motors I o I e I 10 I 12 I 14 I 10 I 18 I 10 I 21 I 1s I 28 I 12 I 30 I 40 - F"mes 14 11 40 48 90 " !08 '10 111 190 114 190 188 l10 B 0 0.222 0.00 IType21 - Hoo•• 0 0 0 0 0 0 0 0 0 0 0 0 0 0 1~~;:~·8 110 0395 43.56 IType11 11 % '" '" f08 m 1f0 140 "' '°° m m rn '"°- 8 0 ID ff] 0617 72 07 Fromes 0 D D 0 0 0 0 0 0 0 0 0 D D @_ Frame. 11 % '" '" f08 m 1f0 140 "' '°° m 98' rn 480- ITvoe 2) 1Type11 11 BB9 O.B8B 608 08 1~~;:~· 0 0 0 0 0 0 0 0 0 0 0 0 0 0- 14 149 1210 422.65 8 - Frames 0 0 0 0 0 0 0 0 0 0 0 0 0 0 16 989 1.580 89210 iT'"•ll - BAR DIMENSIONSfB l7D 2000 739 20 - D ODD 1~~;:~·10 2 410 - THE DIMENSIONS ARE GIVEN ON THE OUTSIDE FIBER OF THE REBAR (SEE BELOW) " 48 00 11 " % !08 "° m ''° f08 m 1f0 140 - ff 0 11 8 2 980 880 -THE TOTAL LENGTHS ARE CALCULATED ON THE BASIS OF THE CENTERLINE Frames " 48 00 11 " % !08 "° m ''° f08 m 1f0 140- 1Type11 19 8 3 850 D08 [ISO 3766:2004 - METHOD Bl - - THE BENDING ANGLES ARE GIVEN IN DEGREES - 1~~;:~· 0 0 0 0 0 0 0 0 0 0 0 0 0 0 18 0 4 830 DDO 8 - Frames 0 0 0 0 0 0 0 0 0 0 0 0 0 0 11 0 6.310 0.00 rl____1 ' iT'"•ll - lB 0 7 990 0.00 ,,- 4D 0 9.860 0.00 l'nchorage ;; ;; ;; ;; ;; ;; 11 00 " '" m '18 144 ,00 - ;t- 0 1Type1) ~j Frames ;; ;; ;; ;; ;; ;; 11 00 " '" m "" 144 ''°ITypell Type T Type R '-- l'nchorage 0 0 0 0 0 0 0 0 0 0 0 0 0 01Type11 Total Length - Bended: 8 Frames1255 0 0 0 0 0 0 0 0 0 0 0 0 0 0 ITvnell Total Length - Straight 941 "Total Length lml 2195 Toto! Weight - Bended 1610 " Total Weight - Straight 116B Total Weight (kgl: 2778 ,, Mean Size Imm] GENERAL WEIGHT Kg )/I 14 l I I 2778 I '"""Ml•DTP •~.o.•• -Ill•- "'"'"[)o-011'- CLIENT: 11 PROJECT IMPLEMENTATION CONSULTANT FILE NAMEITtN aMIv£ : SCALEITY Le: STATUS TfNHTR6NG: PROJECTIDIJAN : HANOI PILOT LIGHT METRO LINE Sedian Nhon •Hanci RailwayStation • a-io E>Au ru: TJVAN THl,fC Hli;:N Dl,f AN PIC-TEC-GRR-ll'No.ID4-1851Hl_llADWG - Technical Design Tuv£N SOONG sAT E>0 THI THI -E>li:M TP HA N()I Elofn N~n ·Ga Hil NOi • SYSTRAS.A u "' 12/0D'12 Upo..d A.K 3.Maurls ."'"' HRB DESIGNED BY THltr K£ : FORMATKHO BAN ve: DATEINGAY: TTTlEITtN B.MiVE: NHUE RIVER CROSSING 2A ''"""' 2nd aubmllalan ar lectmlcal daalgn A.K ].Maurls ·-' A.K A1 31/01/10 WQT SONG NHUe ~~ 1C ""'"" """"'"' A.K G.Maur1s ·-' CHECKEDBYsoAT: This d'awilg must not be eilhlr IDMed, o:ipisd orOlharwiae rep'Ocluoed DECK - SA3-SB3 - REINF - BAR LIST - 212.s ,. ""'"" UPDATE9 A.K ~.Maurls P.Amaud HANOI METROPOLITAN RAIL TRANSPORT PROJECT BOARD G. Maurls In - er h pmrt er uled for •nr prupmewthoullho prkrwrlllln •• BAN·~ AN oU'ONo sAroO THI HANQI pmnnmlon ol HRB. BAN ~T cAU · SA3-SB3 · COT lHi:_P - DANH MVC THANH · 21 H 1A 31/01/10 Flllll lsaua A.K 3.Maurls ·-'REVISION "'" DESCRIPTION -· ..,,,. (Hl'CflE!QI PROJECTDIRECTORIGINAeocDIJ AN : CHIEF CESIGNERICll) NHla,lTHl£T K£ : Mn vii My kh!lng 4JVC ~RI) d,lng - mol h"rlh lh)c, rr(ll phln hrly DR.WING NO.IBAN VE SO : I3An SO'AElOI ""y NOi DUNG sO'A.ElOI m• ..T ailrtil;Mllil~~ Alain B~chereau P.Amaud kllln ~ mll kh!lng41VC..,Mngf'blngvllnbllncilll HRB. PIC-TEC-GRR-WVO-J04-18517-B
  • 91.
    ~ 9! it i ~ii: 15 ES1 S1 SAS'SA7' SA6' ~ REBAR ADJUS TMENT Ellil:U CHINH THANH COT THil:P FOR PT CONFLICT =-- 001.l!.Q! XU~ flQT PT i'@ I!! ~ uw g ®' 8 10 RAP =e~ ~ LAN CAN D '1'& STARTER BARS 0 THANH COT THe!P NHO RA ';: I t ~ ~ ~@ 2x 2-D16 c:: 2x20-D12 (11150 --- fo04' ___,2""x"'26'--"'-D,,,16'-----~ ~ @l150 @O "'"'- <- 'T@.,..,._ N ";i '-;; N I I ll I l....---' --1..- II I ~ w w _ L _ _ ~ -- L..._____ ~ l...._ ~ .1....____. _ _ L..._____ . DETAILX CHITl~TX SCALE: 1/10 Ti'LIO: 1/10 @ ...,o c'°I II. 0 ......... I ~ I - Li 0 n @9 "'"' ~~ ~- ~-0 ... 0 .... '------J '------J 9 0= =_, "' o @- """'6 s;@, N =N SECTION A-A MAT CAT A-A SCALE: 1/20 Ti'Ll;.:1/20 o----+----+----------------+----....___....____. Q.IENT: o----+----+----------------+----....___....____. CHOflAuru: 3B 12J05112 Up Dalod A. K 3" 21/11Y11 2A 3004'11 HRBUpda111d A. K 2nd aubml11lon at'lechnlcal dMlgn A . K 1C ~8110 n 9 !g,_ ';:A ... ~ @ I I • SA9 S3 SB9 KEY PLAN Ki;: HO~CH CHiNH SCALE: 1/200 Ti'LI;.:1/200 n 0 .,g co ·-c;:& ... REBAR ADJUSTMENT 2x20-018 Q EJlt':UCHINHTHANHCOlTHe!P @l1SO ('._'./' FOR PT CONFLICT "1 PROJECT IMPLEMENTATION CONSULTANT 11 VAN lHl,IC HleN DI,/ AN SYSTRAS.A 001VOi XUNGflOT PT FILE NAA1ElTtNBAN/£: DESIGNED BY TH1£TK£ : A. K CHECKED BYSlll.T:F % !I $i 18 2Ml&'IO !;l 8 G. Maur1s Upda1ad A.K UPDATED A. K HANOI METROPOLITAN RAIL TRANSPORT PROJECT BOARD 1----+---+-F-lm- -..--------------+,.-.K---4---4----1 BAN DI/AN llWNG IA.TllOTHI llANQI u 1A 31m1110 REVISION DATE B SLrAOOI Nal.Y DESCRIPTION NQI DUNGWAfJOI IHIHl!BI' HIM! CllllClllBI' IOI.! PROJECTDIRECTORGIAMaocDI/AN: CHIEF~IGNERCll) NHleMTH1£rK£: Alain B~cheraau P. Amaud SA5' - - - SM' 584' SA3' SB3'SB5' 0 § @>032 033 ~~ '1'&.,. ;;I ;;j!;!:! , j ,.-, ~ ,1 .L DETAILX ) L.'- ' ~ CHITle!TX . ~ @) --- -'-- - - -c.- L- -c.- - c.- c.- ~ I/ -c- ~ I/'I I-+- 2x20 012 @l 50 @)- 2x20-018 @§@l150 BLISTER TYPE 4 / RO LOAl4 REINFORCEMENTSEE DWG. ve WV0-J04-18654-B COTTHe!PXEM BAN PIC-TEC-GRR- PIC-TEC-GRR-WV0-J04-18855-B ..-.,; '::::' 'c:: - -, I N - ~ 0 L---~ - ·-1-- -- -'<c ~ ....... 014 8 014- @;l c 08 ~~ :ti& SECTION B-8 @) n MATCATB-B SCALETYLE: FORMATKHO BAN VE: A1 STAlUS TfNH~G : Teclmical Design DATENGAY: 31/01/10 Thil <Rwi'IDmUll:notbe eithlrlOlrled,<q>ied«otl'lll'Wile NP'Odiacl ln wtdea h P11rt orul8dfor•nr prupmewllhoul:.. prlor'Mltsl parmlllllonot HRB. ......My_..,.,._.,,..,ng.....""'"""-"""iHn'-Y....~ ...- .........~ t ~ ,,.,,..., ...HRB. SCALE : 1120 Ti' Li;:1/2D NOTES: ~~~~~~~~~~~~~~~~~~~~~~ GHICHL.f: 1. REINFORCEMENT YIELD STRENGTH: FY=420 MPA. 1. ClldNG DO CHAY CllA cx:fTTHE'.P :fy---420 Mpa 2. CONCRETE COVER: C=50 MM. 2. Ld PBe! TONGe.<oV£c=5D mm 3. FOR PARAPET S"fARTER BARS REFER TO DWG. NO. 3.Ell: XEM THANH COT THe!PCHO'COALANCAN XJNXEM BAN VESO PIC-TEC-GRR-WVO-J00-18803-B TO PIC-TEC-GRR-WVO-J00-18808-B PROJECT CVAN: HANOI PILOTLIGHT METRO LINE Sedion Nhon•HantiRailwayS1atial TIJY£NflOONG sATElOllilTHIfll~M 1l'HA NQI ElatnN~n · Ga Hi NOi Tm.E TtNBANVE: NHUE RIVER CROSSING VU'QT SONG NHUI;: DECK- SA4'-SB4' - REINF -1/2 BAN W.T c:Au .SA4'-SB4' - cOT n -11:.P. 112 DRAl'l1NGNO. BANV£SO: PIC-TEC-GRR-WVO-J04-18520-B 38
  • 92.
    Boe Type NofNb~·, Total Shape Bend Boe Type No." 1~fNbo;'.~Total IL ~h~hapeIBend Boe Type No. lifN~;, Total Shape Bend mark ;od of "'"h No Length Code Type Dimensio~s Shape R"' mark ;od of inmh No eng Code Type Dimensions Shope R"' mar< ;od of ioeach No Length Code Type Dimensions Shape R"' "" momb mmb size m.mb momb size memb m•mb " " '' " " " '' " " " " " 002 "' 1 150 150 3550 00 A=l550 = on '" 1 100 100 rn " 1 A=119 B=JOO b 002 CB 1 B B 1160 " 2 A=B6 B=l51 [=140 D=l15 noo; Cf4 1 35 35 3650 00 Ad610 = °" C1a 1 40 40 3280 15 1 A=l490B=llllt=!D1 ~ "' C15 1 12 12 1340 51 2 A=160 8=160 [=14l g 001 C15 1 5' 5' 3750 00 Ad1>9 = m C15 1 20 20 6270 15 1 A=ll34B=il[=l1l4 ~ °" C15 1 4 ' 1100 " 2 A=490 B=10l [=48l y 000 Cf4 1 20 20 5585 25 1 A=00lB=60J[=5150=575E=4ll9-•445J~ m C15 1 20 20 3710 00 A=l709 =HEAN '°' C14 1 20 20 5500 25 1 A=60lB=60lt=515D=515E=4l89-·4lBB~ HEAN m C12 f 40 40 3850 15 1 A=1012B=565C=IJ!I ~ '°" CID 1 40 40 1510 15 1 A=l1l 8=141 [=1349 ~ rn C12 1 40 40 2050 99 1 A=Sl0B=l49[=14l4 Gd-a1=91·ai=10· 009 CB 1 12 12 1380 99 2 A=199-•149 B=l51 (=llS IF OlB C12 1 '° '° 1350 15 1 A=69lB=l91[=1Jl ~HEAN rM51 010 C12 1 5 5 1020 99 2 A~l9J B~15C ~ m CID 1 '° '° 1350 13 1 A~1115 t=::=i · IF011 C18 1 40 40 5430 99 2 .. m C8 1 4 4 1130 99 2 A~9B B~Jl1 Cdl5 HEAN A=IBl B=110-•1l1B C=181 D=11lB-•1l11 E=19l F=IBl 001 C8 1 B B 1140 99 2 A=101 B=l51 C=l15 IF<>1=1l5.a.1=ll·lll=118.114=11·...s=1l5. ko•CA[)o-OTP- '""""°•-OTP- A.-ooCA[)o-011'- c c Total Lengths and Weights Number of members 1 Type T Type R BENDING DIAMETERS Imm] - Diameters 5 B 10 12 10 15 1B 22 22 25 2B 12 35 '° Lengths of standard hooks Imm)Tot~l Weight Total Total Weight Total Hoo•sDiameter Length per unit Weight Length per unit Weight " " '° 22 "' % 100 120 132 ''° "' 250 2BB 320 ,,, (kg/ml (kg) ,,, lkg/m) [kg] 0 IType11 lo,.motors I o I e I 10 I 12 I 14 I 10 I 18 I 10 I 21 I 2s I 28 I i2 I io I 40 - F"mes " 32 '° " 55 " 10B 122 132 150 "' 255 '"" 320 5 0 0.222 0.00 IType21 - Hoo•• 0 0 0 0 0 0 0 0 0 0 0 0 0 0 1~~;:~·B 92 0395 36.53 IType11 12 % '" '" '" m '" m "' '°° m m rn m - 0 0 10 114 0617 70.58 Fromes 0 0 0 0 0 0 0 0 0 0 0 0 0 0 @_ Frame. 12 % '" '" '" "' '" ''° "' '°° m '"' rn m- ITvoe 21 ITypell 12 829 O.B8B 735.81 1~~;:~· 0 0 0 0 0 0 0 0 0 0 0 0 0 0- 14 353 1210 427.25 0 - Frames 0 0 0 0 0 0 0 0 0 0 0 0 0 0 15 415 1.580 655 83 iT'"•ll - BAR DIMENSIONS18 348 2000 696 80 - 0 000 1~~;:~·20 2 470 - THE DIMENSIONS ARE GIVEN ON THE OUTSIDE FIBER OF THE REBAR (SEE BELOW) ;; " '° 12 "' % 100 "° m ''° 100 m '" '"- ff 0 22 0 2 9BO 000 -THE TOTAL LENGTHS ARE CALCULATED ON THE BASIS OF THE CENTERLINE Frames " " '° 12 "' % 100 "° m ''° 100 m '" '"- ITypell 25 0 3 850 0 00 [ISO 3766:2004 - METHOD Bl - - THE BENDING ANGLES ARE GIVEN IN DEGREES - 1~~;:~· 0 0 0 0 0 0 0 0 0 0 0 0 0 0 2B 0 4 830 0 00 0 - Frames 0 0 0 0 0 0 0 0 0 0 0 0 0 0 32 0 6.310 0.00 rl____1 ' iT'"•ll - 35 0 7 990 0.00 ,,- '° 0 9.860 0.00 l'nchorage ;; ;; ;; ;; ;; ;; 12 '° " '°' "' 100 '" ''°- ;t- 0 1Type1) ~j Frames ;; ;; ;; ;; ;; ;; 12 '° " '°' "' 100 '" '"ITvpell Type T Type R '-- l'nchorage 0 0 0 0 0 0 0 0 0 0 0 0 0 01Type11 Total Length - Bended: 1219 0 Frames ITvnell 0 0 0 0 0 0 0 0 0 0 0 0 0 0 Total Length - St-raight 9ll "Total Length lml 2152 Toto! Weight - Bended 1566 " Total Weight - Straight 1057 Total Weight (kgl: 2623 ,, M~an Size Imm] GENERAL WEIGHT kg )/I 141 I I 2623 I '"""Ml•DTP •~.O.D• -OTP- "'"'"'"-011'- • CLIENT: 11 PROJECT IMPLEMENTATION CONSULTANT FILE NAMEITtN aMIv£ : SCALEITY Le: STATUS TfNHTR6NG: PROJECTIDIJAN : HANOI PILOT LIGHT METRO LINE Sedian Nhon •Hanci Railway Station • a-io E>Au ru: TJVAN THl,fC Hli;:N Dl,f AN PIC-TEC-GRR-ll'No.ID4-18521-6_3ADWG - Technical Design Tuv£N SOONG sAT E>0 THI THI -E>li:M TP HA N()I Elofn N~n ·Ga Hil NOi • SYSTRAS.A u "' 12/0D'12 Upo..d A.K 3.Maurls ."'"' HRB DESIGNED BY THltr K£ : FORMATKHO BAN ve: DATEINGAY: TTTlEITtN B.MiVE: NHUE RIVER CROSSING 2A ''"""' 2nd aubmlllalan arlectmlcal daalgn A.K ].Maurls ·-' A.K A1 31/01/10 WQT SONG NHUe ~~ 1C ""'"" """''"' A.K G.Maur1s ·-' CHECKEDBYsoAT: This d'awilg mustnotbe eilhlrIDMed,o:ipisd orOlharwiaerep'Ocluoed DECK - SA4'-SB4' - REINF - BAR LIST - 2 / 2.s 18 ""'"" UPDATE> A.K ~.Maurls P.Amaud HANOI METROPOLITAN RAIL TRANSPORT PROJECT BOARD G. Maurls In - er h pmrt er uucl for •nr prupmeWlhoullho prkrwrlllln •• BAN·~ AN oU'ONo sAroO THI HANQI pmnnmlon ol HRB. BAN ~T cAU · SA4'·SB4' · COT lHi:_P - DANH MVC THANH - 2 I ~ H 1A 31/01/10 Flllll lsaua A.K 3.Maurls ·-'REVISION """ DESCRIPTION -· ""'"'" (Hl'CflE!QI PROJECTDIRECTORIGINAeocDIJ AN : CHIEF CESIGNERICll) NHla,lTHl£T K£ : Mn vii My kh!lng 4JVC ~RI) d,lng - mol h"rlh lh)c, rr(ll phln hrly DR.WING NO.IBAN VE SO : I3An SO'AElOI '"'y NOi DUNG sO'A.ElOI m• ..T ailrtil;Mllil~~ Alain B~chereau P.Amaud kllln ~ mll kh!lng41VC..,Mngf'blngvllnbllncilll HRB. PIC-TEC-GRR-WVO-J04-18521-B
  • 93.
    ~ 9! it i ~ii: 15 ES1 S1 SAS'SA7' SAS' ~ REBAR ADJUSTMENT £11£U CHINH THANH COT TH£P FOR PT CONFLICT =-- EOI VOi XUNG £10TPT t' n I!! ~ uw .!: F % !I $i !;l 8 uB PARAPET m~ LAN CAN Ci, STARTER BARS cl. THANH c0T TH£P NH0 RA ';: ~ t tr[ ~ 0 2x2-D16 c:: - ~ ·- 10 N Ci ®0 "'"'~(i_,__ N~ N x {:::. 1 ~ I __; -j I ~ ,. - · DETAILX CHI Tli;T X SCALE: 1/10 TYLS: 1110 3B 12.!05112 Up Dalod A. K 3" 21/11Y11 Upda111d A.K 2A 3(WU11 2nd aubml11lon at'lechnlcal dMlgn A . K 8........, t:?&............ I I _.... I I I J_ 0 n @9.. .........,.. !g ~- Ci~ I a..,. ·-.... ..... 0 ... -SECTION A-A MAT CATA-A SCALE: 1/20 rt Lf;::1/20 HRB ® !8 ·-c;:& .... I I 1C ~8110 18 2Ml&'IO Upda111d A. K 1--=--i;;;=-"--+-"u"'PD,t;=JED;...__ _ _ _ _ _ _ _ _ _ _ _"-,."".K"----==-.;..;..;;;=----1 HANOI METROPOLITAN RAIL TRANSPORT PROJECT BOARD 1A 31m1110 REVISION DATE SLrAOOI Nal.Y F1m -. " ·K BAN DI/AN allONG sA.TaO THI HANQI DESCRIPTION NQI DUNGWAfJOI IHIHl!BI' HIM! CllllClllBI' IOI.! • SA9 sa seg KEY PLAN K~ HOACH CHfNH SCA(.E : 11200 rt Ll~:1/200 PROJECT IMPLEMENTATION CONSULTANT Tl1 VAN THl,IC HleN DI,/ AN SYSTRAS.A PROJECTDIRECTORGIAMaocDI/AN: Alain B~cheraau FILE NAA1ElTeN e,1,1/£: DESIGNED BYTHli;rK£: A. K CHECKED BYSlll.T: G. Maur1s CHIEF ~IGNERCll) NHleMTH1£r Ke: P. Amaud SA5 SM SB4 SA3 SB3 ' S2 ES2 SB5 0 § @) SCALE TYLE: FORMATKHO BAN VE: A1 STAlUS TfNH~G : Teclmical Design DATENGAY: 31/01/10 Thil <Rwi'ID mUll:notbe eithlrlOlrled,<q>ied«otl'lll'Wile NP'Odiacl ln wtdeah P11rtorul8dfor•nr prupmewllhoul:.. prlor'Mltsl parmlllllonot HRB. ......My_..,.,._.......ng ..... ..,.. .... _m(llpMnt.y ....~ ...- .........~t~'"""'""'""""· M 0-018 fii11 0 @l1SO v g BLISTER TYPE 4 R0L~4 REINFORCEMENT SEE DWG. cOT TH£P XEM BAN VE PIC-TEC-GRR-WVO.J04-18654-B PIC-TEC-GRR-WVO.J04-18655-B NOTES: ---------------------~ GHI CHL.f: 1. REINFORCEMENT YIELD STRENGTH: FY=420 MPA. 1. ClldNG E0 CHAY CllA cx:fTTHE'.P :fy---420 Mpa 2. CONCRETE COVER: C=50 MM. 2. Ld PBS TONG e.<oVE c=50 mm 3. FOR PARAPET S"fARTER BARS REFER TO DWG. NO. 3. EE. XEM THANH COT THe!P CHO'COA LAN CAN XJN XEM BAN VE SO PIC-TEC-GRR-WVO-J00-18803-B TO PIC-TEC-GRR-WVO.J00-18808-B PROJECT CVAN: HANOI PILOTLIGHT METRO LINE Sedian Nhon•HantiRailway S1atial TIM:NellONGs>.r ElOTHITHIe1eM1l'HANQI Batn N~n . Ga Hi NOi Tm.E~Ne,l,IVE : NHUE RIVER CROSSING VU'QT SONG NHUI;: DECK- SA4-SB4 - REINF -1/2 BAN ~T cAU - SA4-SB4 ·COT THi:P - 1 / 2 DRAl'l1NGNO. BANVESO: PIC-TEC-GRR-WVO-J04-18524-B 38
  • 94.
    Boe Type NofNb~·, Total Shape Bend Boe Type No.. lofNbo;,~Total IL ~h~hapeIBend Boe Type I No Total Shape BendNo ofb;r mark ;od of "'"h No Length Code Type Dimensio~s Shape R"' mark ;od of inmh No eng Code Type Dimensions Shope R"' mar< ;od of ioeach No Length Code Type Dimensions Shape R"' "" momb mmb size m.mb momb size memb m•mb " " '' " " " '' " " " " " 002 "' 1 150 150 3550 00 A=l550 = on '" 1 100 100 rn " 1 A=119 B=JOO b 002 CB 1 B B 1160 " 2 A=B6 B=l51 [=140 D=l15 noo; Cf4 1 35 35 3650 00 Ad610 = °" C1a 1 40 40 3280 15 1 A=l490B=llllt=!D1 ~ "' C15 1 1Z 1Z 1340 51 2 A=160 8=160 [=14l g 001 C15 1 52 52 3750 00 Ad1>9 = m C15 1 zo zo 6270 15 1 A=ll34B=il[=l1l4 ~ °" C15 1 4 ' 1100 " 2 A=490 B=10l [=48l y 000 Cf4 1 20 20 5585 25 1 A=00lB=60J[=5150=575E=4ll9-•445J~ m C15 1 zo zo 3710 00 A=l709 =HEAN '°' C14 1 20 20 5500 25 1 A=60lB=60lt=515D=515E=4l89-·4lBB~ HEAN m CIZ f 40 40 3850 15 1 A=1012B=565C=IJ!I ~ '°" CID 1 40 40 1510 15 1 A=l14 8=140 C=m-6 ~ rn CIZ 1 40 40 2050 99 1 A=Sl0B=l49[=14l4 Gd-a1=91·ai=10· 009 CB 1 1Z 1Z 1380 99 2 A=199-•149 B=l51 (=llS IF OlB CIZ 1 '° '° 1350 15 1 A=69lB=l91[=1Jl ~HEAN rM51 010 C1Z 1 5 5 1020 99 2 A~l9J B~15C ~ m C10 1 '° '° 1350 13 1 A~1115 t=::=i · IF011 CIB 1 40 40 5430 99 2 .. m CB 1 4 4 1130 99 2 A~9B B~Jl1 Cdl5 HEAN A=IBl B=110-•1l1B C=181 D=11lB-•1l11 E=19l F=IBl 001 CB 1 B B 1140 99 2 A=101 B=l51 C=l15 IF<>1=1l5.a.1=ll·lll=118.114=11·...s=1l5. ko•CA[)o-OTP- '""""°•-OTP- A.-ooCA[)o-011'- c c Total Lengths and Weights Number of members 1 Type T Type R BENDING DIAMETERS Imm] - Diameters 5 B 10 1Z 10 15 1B " zz 25 ZB 1Z 35 '°Tot~l Weight Total Tot~l Weight Total Lengths of standard hooks Imm) Diameter Length per unit Weight Length per unit Weight Hoo•s " " '° ;z " % 100 120 132 ''° "' 250 ZBB m 1,1 (kg/ml (kg) 1~1 lkg/m) [kg] 0 IType11 lo,.motors I 6 e I 10 I 12 I 14 I 10 I 18 I 10 I 21 I 2s I 28 I i2 I io I 40 - F"mes " 32 '° " 55 " 10B 1ZZ 132 100 "' 255 '"" m5 0 0.222 0.00 IType21 - Hoo•• 1~~;:~·B 9Z 0395 36.53 IType11 0 0 0 0 0 0 0 0 0 0 0 0 0 0 " % '" "' '" m '" m "' ;oo m '"' rn m - " 0 _10_ 114 0617 70.58 Fromes @_ Frame. ITvne 2) 0 0 0 0 0 0 0 0 0 0 0 0 0 0 ITypell " % '" '" '" "' '" ''° "' ;oo m '" rn m 1Z BZ9 O.B8B 735.81 1~~;:~·- 0 0 0 0 0 0 0 0 0 0 0 0 0 0 14 353 1210 427.25 "- l~ra-:•;1 0 0 0 0 0 0 0 0 0 0 0 0 0 0 15 415 1.580 655 83 - BAR DIMENSIONS1B 348 2000 696 80 - 0 000 1~~;:~·zo 2 470 - THE DIMENSIONS ARE GIVEN ON THE OUTSIDE FIBER OF THE REBAR (SEE BELOW) ;; " '° " " " 100 "° m '" 100 m '" ''°- d 0 zz o 2 9BO 000 Frames - -THE TOTAL LENGTHS ARE CALCULATED ON THE BASIS OF THE CENTERLINE ITypell " " '° " " " 100 "° m '" 100 m '" ''°25 o 3 BSO 0 00 [ISO 3766:2004 - METHOD Bl - - 1~~;:~· 0 0 0 0 0 0 0 0 0 0 0 0 0 0 ZB 0 4 830 0 00 - THE BENDING ANGLES ARE GIVEN IN DEGREES "- N'-:'~1 0 0 0 0 0 0 0 0 0 0 0 0 0 0 32 0 6.310 0.00 rl____1 '- 35 0 7 990 0.00 ,,- ---'°---- 0 9.860 0.00 Anchorage ;; ;; ;; ;; ;; ;; " '° " '" "' 100 '" ''° Jt- 1Type1) ~J 0 Frames ITypell ;; ;; ;; ;; ;; ;; " '° " '" "' '" '" '" Type T Type R '---- Anchorage 0 0 0 0 0 0 0 0 0 0 0 0 0 01Type11 Total Length - Bended: 1219 " Frame> IT··-ell 0 0 0 0 0 0 0 0 0 0 0 0 0 0 Total Length - St-raight 933 "Total Length lml 2152 Toto! Weight - Bended 1566 " Total Weight - Straight 1057 Total Weight (kgl: 2623 ,, Mean Size Imm] GENERAL WEIGHT kg viI 141 I I 2623 I '""""'""" •~.O.D• -OTP- "'"'"[)o-011'- CLIENT: 11 PROJECT IMPLEMENTATION CONSULTANT FILE NAMEITtN BAN v£ : SCALEITYLe: STATUS TfNHTR6NG: PROJECTIDIJAN : HANOI PILOT LIGHT METRO LINE Sedian Nhon •Hanci RailwayStation • a-io E>Au ru: nrvAN THl,fC Hli;:N DI/ AN PIC-TEC-GRR-ll'No.ID4-18525-6_llADWG - Technical Design Tuv£N SOONG sAT E>0 THI THI -E>li:M TP HA N()I Elofn N~n ·Ga Hil NOi • SYSTRAS.A u "' 12/0D'12 Upo..d A.K G.Maurls ."'"' HRB DESIGNED BY THltr K£ : FORMATKHO BAN ve: DATEINGAY: TTTlEITtN BANVE: NHUE RIVER CROSSING 2A ''"""' 2nd aubmllalan ar lectmlcal daalgn A.K "1.Meurls ·-' A.K A1 31/01/10 WQT SONG NHUe ~~ 1C ""'"" """''"' A.K b.Meurls ·-' CHECKEDBYsoAT: DECK - SA4-SB4 - REINF - BAR LIST - 212.s 18 ""'"" UPDATE> A.K ~.Maurls .... Arnaud HANOI ME'TROPOUTAN RAIL TRANSPORT PROJECT BOARD This d'awilg must not be eilhlr IDMed, o:ipi!lcl orOlharwiae rep'Ocluoed •• G. Maurls In - er h pmrt ar uucl for •nr prupmaWlhoullho prkrwrlllln H 1A 31/01/10 Flllll lssua A.K G.Maurls ·-' BAN·~ AN oU'ONo sAroO THI HANQI pennllillon ol HRB. BAN ~T cAU · SA4-SB4 · COT lHi:_P - DANH MVC THANH · 21 REVISION "'" DESCRIPTION -· ..,,,. (Hl'CflE!QI PROJECTDIRECTORIGINAeocDIJ AN : CHIEF CESIGNERCll) NHla,lTHl£'TK£ : Mn vii My kh!lng 4JVC ~RI) d,lng - mol h'rlh lh)c, m(ll phln hrly DR.WING NO.IBAN~ SO : In SO'AElOI '"'y NOi DUNG sO'AElOi m• ..T ailrtil;llillil~~ Alain B~chereau P.Amaud kllln ~ mll kh!lng41VC..,Mngf'blngvllnbllncilll HRB. PIC-TEC-GRR-WVO-J04-18525-B 3A
  • 95.
    ~ 9! it i ~ii: 15 ES1 S1 SAS'SA7' SA6' -REBAR ADJUSTMENT D1eu CHINH THANH COT ™eP FOR PT CONFLICT =-- 001 VOi XUNGflQT PT ~ I!! ~ uw .!: 19 PARAPET .. "" STARTER BARS ~i, 0 0111 ~-THANH COTTHeP NHO RA ';: ___ rQOI. ~2=-xco.29=--~0~16'---' ~ @1150 ®0 ~~ '7@_,._ N'° ~ x N ~ t~ %-J ...... )..- ~ ~ §) 2x2-016 c:: _ ,,______ ~ .- ~ I l i i - ~ - I <i ~ · - ~· DETAILX CHITIETX SCALE: 1/10 Ti' LS: 1110 -@ ~~ 9•..N "N ~ 8 =5! ;l 9•..N ..N '-- I ·- ll 0 n 9 @) :em ~;;0 9• mo Co 9•0 ·-N ...... C> N L__J 1......--.....J 9 © = =...tu"> ...,."' ~~ o@, 6 N N - $SECTION A-A MAT CAT A-A SCALE: 1120 Ti'Ll;.:1/20 o----+----+----------------+----....___..,.____. Q.IENT: o----+----+----------------+----....___..,.____. CHOflAuru: 3B 12.!05112 Up Dalod A. K 3" 21/11Y11 2A 3(WU11 HRBUpda111d A.K 2nd aubml11lon at'lechnlcal dMlgn A . K 1C ~8110 n @ ..,g Co ·-';'.!& .... @@ !:! c 'N "N "'o o '=rno x- _;@ • SA9 S3 SB9 KEY PLAN K~ HOACH CHfNH SCALE : 11200 TYLS:1/200 PROJECT IMPLEMENTATION CONSULTANT 11 VAN THl,IC HleN DI,/ AN SYSTRAS.A F % !I $i 18 2MIBl10 !;l 8 Upda111d A. K UPDATED A. K HANOI METROPOLITAN RAIL TRANSPORT PROJECT BOARD l----+---+-F-1'"1--..--------------+-A-.K---4---4------1 BAN DlfAN llWNG IA.TllOTHI llANQI u 1A 31m1110 REVISION DATE B SLrAOOI Nal.Y DESCRIPTION NQI DUNGWAfJOI IHIHl!BI' HIM! CllllCIDBI' IOI.! PROJECTDIRECTORGIAMaocDI/AN: Alain B~cheraau n @ C> mo Co ·-c;:• .... REBAR ADJUSTMENT D1eu CHINH THANHCOT ™eP FOR PT CONFLICT '""r 001 VOi XUNGflOT PT FILE NAA1ElTtNBAN/£: DESIGNED BYTH1£TK£ : A. K CHECKED BYSlll.T: G. Maur1s CHIEF~IGNERCll) NHleMlll1£rK£: P. Amaud SA6.--- SB6' 0 ~~ 9Ci...:! ,-- ,1 J_ c;- DETAILX ) CHITleiTX DOD ~ E;I """' :! c ~~ ~- SCALE TYLE: FORMATKHO BAN VE: A1 SAS' SB5' @ @)032 033 ;;I ;;I SM' SB4' 1 ~ ,... :::::- 2x20 012 @l-@1150 M0-018 @§@1150 BLISTER TYPE 3 c-- t-- ~ / R0LON3 - L- - II REINFORCEMENT SEE DWG. L-- L-- cOTTHeP XEM BAN veL- L-- ~ I/L-- - - L- - ( ~ PIC-TEC-GRR-WVO-J04-18654-B L-- - L-- L-- ;:!;:t-- ,_L....- - ,_ c:::L....- t-- - - - -~ ~ - -~ ~ PIC-TEC-GRR-WVO-J04-18655-B I ~ ,_ ~ - 014 S L__/ 014 ~ L__J08 n SECTION B-B STATUS TfNH~G : Teclinical Design DAlENGAY: 31/01/10 MAT CAT B-B0 SCALE : 1120 TYLS:1/20 NOTES: ~~~~~~~~~~~~~~~~~~~~~~ GHICHL.f: 1. REINFORCEMENT YIELD STRENGTH: FY=420 MPA. 1.ClldNG DO CHAY CllA cx:fTTHE'.P :fy""-420 Mpa 2. CONCRETE COVER: C=50 MM. 2.Ld PBei TONG e.<o /£c=50 mm 3. FOR PARAPET S"fARTER BARS REFER TO DWG. NO. 3. Dei XEM THANH COT THe!P CHO'COA LAN CAN XJN XEM BAN /£SO PIC-TEC-GRR-WVO-J00-18803-B TO PIC-TEC-GRR-WVO-J00-18808-B PROJECTCVAN: HANOIPILOTLIGHT METRO LINE Sedion Nhon•HantiRailway S1atial TIJY£NflOONG sAT00THITHIfll~M TPHANQI Elatn N~n · Ga Hi NOi Tm.ETtNBANVE: NHUE RIVER CROSSING VU'QT SONG NHUI;: Thil <Rwi'ID mUll:notbe eithlrlOlrled,<q>ied«otl'lll'Wile NP'Odiacl ln wtdeah P11rtorul8dfor•nr prupmewllhoul:.. prlor'Mltsl parmlllllonot HRB. DECK- SA5'-SB5' - REINF -1/2 BAN W,TcAU. SA5'-SB5'-c0TTHt:.P. 1/ 2 ......My_..,.,._.......ng ..... ""'"""-"""iHn'-Y .... ~ ... - .........~t~,,.. ...... HRB. DRAl'l1NGNO. BANV£SO: PIC-TEC-GRR-WVO-J04-18528-B 38
  • 96.
    Boe Type NofNb~·, Total Shape Bend Boe Type No." 1~fNbo;'.~Total IL ~h~hapeIBend Boe Type No. lifN~;, Total Shape Bend mark ;od of "'"h No Length Code Type Dimensio~s Shape R"' mark ;od of inmh No eng Code Type Dimensions Shope R"' mar< ;od of ioeach No Length Code Type Dimensions Shape R"' "" momb mmb size m.mb momb size memb m•mb " " '' " " " '' " " " " " 002 "' I 146 146 3550 00 A=l550 = OIB rn2 I 2 2 1050 " 2 A=lOO B=l50 IQ 001 DB I B B 1140 " 2 A=IDl 6=l51 [=l15 IF oo; 014 I 40 40 3650 DD Ad6•8 = on rn2 I 2 2 1180 99 2 A=l00B=l9l IQ °" CB I 8 8 1160 99 2 A=86 B=ll1 (=140 D=l1S n001 Dl6 I 58 58 3750 DD Ad149 = °" Dl8 I 40 40 3280 15 I A=14% B=llll (=iD1 ~ °" 016 I 12 12 1340 51 2 A=160 8=160 [=1J g 000 Dl4 I 20 20 5645 25 I AoOOlBo60J[o5750oSJSEo4451-•50J~ m 016 I 20 20 HEAN 6270 15 I Aol134Boil[oJ1J4 ~ °" 016 I ' ' 1100 21 2 Ao490 BolOJ [o48l 4=F '°' Dl4 I 20 20 5590 25 I A=60lB=60lt=515D=515E=4l88-,4469~ m 016 f 20 20 3710 DD A=l709 =HEAN '°" DID I 40 40 1510 15 I A=l14 8=140 C=m-6 ~ rn 012 I 40 40 3850 15 I A=1011B=S05[=11!1 ~ 009 DB I 12 12 1280 89 2 Aol99-•149 So351 [ol15 IF m 012 I 40 40 2050 89 I Ao5l0Bol49[ol4l4 IJdHEAN 11M1•11:Mo• 'Off om I 40 40 5115 99 2 A=lilB=1090-•1103l=l81D=1088-•1155E=19lF=I~ °'' rn2 I 40 40 1350 15 I A=69J B=m (=OJJ ~HEAN ..1=1ll"o.2=11"o.3=108°o.4=11"o.5=1ll0 ' cl=SIO °" DB I 100 100 530 99 I A=l19 B=lOD 6 m DID I 40 40 1350 13 I A=1l15 r== or; Dl2 I ' 4 1110 89 2 AolO~ Bo17~ IQ 000 08 I 4 4 1130 99 2 Ao98 BoJ51 [ol15 IF ko•CA[)o-OTP- '""""°•-OTP- A.-ooCA[)o-011'- c c Total Lengths and Weights Number of members I Type T Type R BENDING DIAMETERS Imm] - Diameters ' ' ID 12 ff fB " '° 22 25 28 32 lB OD Lengths of standard hooks Imm)Tot~l Weight Total Total Weight Total Hoo•sDiameter Length per unit Weight Length per unit Weight lB OB 00 22 " % '"° 120 m ''° "' 25' 288 m,,, (kg/ml (kg) ,,, lkg/m) [kg] 0 IType11 lo,.motors I o I e I 10 I 12 I 14 I 10 I 18 I 10 I 21 I 2s I 28 I i2 I 36 I 40 - F"mes " 22 OD OB 5B " '"° 120 m 190 "' 25' '°" m6 D 0.222 0.00 IType21 - Hoo•• 0 0 0 0 0 0 0 0 0 0 0 0 0 0 1~~;:~·B 91 0395 36.06 IType11 " % '" '" '" m ,,. m "' '°° m '"' rn '"°- B 0 ID 114 0617 70.58 Fromes 0 D D 0 0 0 0 0 0 0 0 0 D D @_ Frame. " % '" '" '" "' ,,. >OD "' '°° m '" rn '"°- ITvoe 2) ITypell 12 811 O.B8B 725.67 1~~;:~· 0 0 0 0 0 0 0 0 0 0 0 0 0 0- 14 rn 1210 448.55 B - Frames 0 0 0 0 0 0 0 0 0 0 0 0 0 0 16 438 1.580 691.38 iT'"•ll - BAR DIMENSIONS18 336 2000 67160 - D DOD 1~~;:~·20 2 470 - THE DIMENSIONS ARE GIVEN ON THE OUTSIDE FIBER OF THE REBAR (SEE BELOW) lB " 00 " " " '°' "° m '" ,., m ,,. ''°- ff 0 22 D 2 980 BOD -THE TOTAL LENGTHS ARE CALCULATED ON THE BASIS OF THE CENTERLINE Frames lB " 00 " " " '°" "° m '" '" m ,,. ''°- ITypell 25 D 3 850 DDD [ISO 3766:2004 - METHOD Bl - - THE BENDING ANGLES ARE GIVEN IN DEGREES - 1~~;:~· 0 0 0 0 0 0 0 0 0 0 0 0 0 0 2B D 4 830 DDD B - Frames 0 0 0 0 0 0 0 0 0 0 0 0 0 0 32 D 6.310 0.00 rl____1 ' iT'"•ll - 36 D 7 990 0.00 ,,- 40 D 9.860 0.00 l'nchorage ;; ;; ;; ;; ;; ;; " DO " '" "' '" '" ,00 - ;t- 0 1Type1) ~j Frames ;; ;; ;; ;; ;; ;; " DO " '" "' '" '" '"ITvpell Type T Type R '-- l'nchorage 0 0 0 0 0 0 0 0 0 0 0 0 0 01Type11 Total Length - Bended: B Frames1211 0 0 0 0 0 0 0 0 0 0 0 0 0 0ITvnell Total Length - St-raight 95' "Total Length lml 2167 Toto! Weight - Bended 1546 ~ Total Weight - Straight 1098 Total Weight (kgl: 2644 ,, Mean Size Imm] GENERAL WEIGHT Kg )/I 14 I I I 2644 I '"""Ml•DTP •~.O.D• -OTP- "'"'"'"-011'- • CLIENT: 11 PROJECT IMPLEMENTATION CONSULTANT FILE NAMEITtN BAN v£ : SCALEITYLe: STATUS TfNHTR6NG: PROJECTIDIJAN : HANOI PILOT LIGHT METRO LINE Sedian Nhon •Hanci RailwayStation • a-io E>Au ru: nrvAN THl,fC Hli;:N DI/ AN PIC-TEC-GRR-ll'No.ID4-1852IHl_llADWG - Technical Design Tuv£N SOONG sAT E>0 THI THI -E>li:M TP HA N()I Elofn N~n ·Ga Hil NOi • SYSTRAS.A u "' 12/0D'12 Upo..d A.K 3.Maurls ."'"' HRB DESIGNED BY THltr K£ : FORMATKHO BAN ve: DATEINGAY: TTTlEITtN BANVE: NHUE RIVER CROSSING 2A ''"""' 2nd aubmllalan ar lectmlcal daalgn A.K ].Meurls ·-' A.K A1 31/01/10 WQT SONG NHUe ~~ 1C ""'"" """'"' A.K G.Meur1s ·-' CHECKEDBYsoAT: This d'awilg must not be eilhlr IDMed, o:ipi!lcl orOlharwiae rep'Ocluoed DECK - SA5'-SB5' - REINF - BAR LIST - 2 / 2.s ,. ""'"" UPDATE> A.K ~.Maurls P.Amaud HANOI ME'TROPOUTAN RAIL TRANSPORT PROJECT BOARD G. Maurls In - er h pmrt ar uucl for •nr prupmaWlhoullho prkrwrlllln •• BAN·~ AN oU'ONo sAroO THI HANQI pennllillon ol HRB. BAN ~T cAU · SA5'·SB5' · COT lHi:_P - DANH MVC THANH - 2 I ~ H 1A 31/01/10 Flllll lssua A.K 3.Maurls ·-'REVISION """ DESCRIPTION -· ,,.,.,. (Hl'CflE!QI PROJECTDIRECTORIGINAeocDIJ AN : CHIEF CESIGNERCll) NHla,lTHl£'TK£ : Mn vii My kh!lng 4JVC ~RI) d,lng - mol h"rlh lh)c, m(ll phln hrly DR.WING NO.IBANVESO : I3An SO'AElOI '"'y NOi DUNG sCrA.ElOi "'" ..T ailrtil;llillil~~ Alain B~chereau P.Amaud kllln ~ mll kh!lng41VC..,Mngf'blngvllnbllncilll HRB. PIC-TEC-GRR-WVO-J04-18529-B
  • 97.
    ~ 9! it i ~ii: 15 ES1 S1 SAB'SA7' SAS' ~T fl1£U CHINH THANH c0T THEP FDR PT CONFLICT =--- EJOI VO'I XUNGEJOTPT ~@ I!! ~ uw .!: ®' @) 10 PARAPET !!~ N ""0 .,..,, ~-9&0 N ..... "'... ®0 ~~ ";'@, -.t- N~ ~ x ~ ( ~ I ( ' ( 11 I n-- L--J ....- t~ %-1 )..- N ~ I.I @> 2x 2-D16 c:: _ ,,______ ~ -- ~~~ ~ - - ~· DETAILX CHI Tli;T X SCALE: 1/10 ITLS: 1110 -8 ~~ 91&0 N ..N :---_ 8 o"" Ci~ ,& ..N ..N I ( ( ~ I -ll n 0 9 @ "'"' :e;!i:jii, 0..,.,. Co 91&0 J.aN 0 .... L___J L___J 9 @ = =_,en -.ten ~~ a@, 6N - C") SECTION A-A MAT CATA-A SCALE: 1/20 ITLS:1120 o----+----+----------------+----....___....____. Q.IENT: o----+----+----------------+----....___....____. CHOflAuTU: 3B 12.!05112 Up Dalod A.K 3" 21/11Y11 Upda111d 2A 3004'11 2nd aubml11lon at'lechnlcal dMlgn A.K HRBA.K 1C ~8110 A.K n ® ..,g Co ·-<;:& .. ~ N CiI N "'.... • SA9 S3 SB9 KEY PLAN Kl: HOACH CHfNH SCA(.E : 1/200 ITLS:1120D PROJECT IMPLEMENTATION CONSULTANT TU VAN lHl,IC HleN DI,/ AN SYSTRAS.A F % Upda111d !I $i 18 2MIBl10 UPDATED !;l 8 A . K HANOI METROPOLITAN RAIL TRANSPORT PROJECT BOARD t----+---+----------------4-A-.K---4----+-----l BAN DI/AN llWNG IA.TllOTHI llANQI u 1A 31m1110 REVISION DATE B SLrAOOI Nal.Y Flr"111a» DESCRIPTION NQI DUNGWAfJOI IHIHl!BI' HIM! CllllClllBI' IOI.! PROJECTDIRECTOR IGIAMaocDI/AN: Alain B~cheraau n @ ""CDo Co ·-<;:A .. REBAR ADJUSTMENT E1£U CHINH THANH c0,EP FOR PT CONFLICT EJOI VO'I XUNG E>0T PT FILE NAA1ElTtNBAN/£: DESIGNED BYTH1£TK£ : A. K CHECKED BYSlll.T: G. Maur1s CHIEF ~IGNERCll) NHleMlll1£rK£: P. Amaud SA6 SA5 SB5 SM SB4SB6 9 @ @)032 033 ~~ gf g[91&...;! ,----.,. I I I 11 I ---;; ,1 2x20- 012 @-J ~ ,__ @.1150 DETAILX ) CHI TIETX . M 0- 018 @/[cil150 BLISTER TYPE 3 ODO / ROL.Wll 3 - 1---- - J V REINFORCEMENT SEE DWG. 1.- 1---- COT THEP XEM BAN ve ~ L--- - - 1---- - lU~ PIC-TEC-GRR-WVO.J04-18654-B L--- - L--- L--- -1- ~1 L--- 1- 1- 1---- '-- - PIC-TEC-GRR-WVO.J04-18655-B~ I- - '--:: -L--- - -~ i;;. _... ~ - -~ I-< 014 S L.___) 0 14 ~ L___J.. DB nCi ~~ ~- SECTION 8-B MATCATB-B SCALEITYLE: FORMATKHO BAN VE: A1 STAlUS TfNH~G : Teclmical Design DATEINGAY: 31/01/10 Thil <Rwi'ID mUll:notbe eithlrlOlrled,<q>ied«otl'lll'Wile NP'Odiacl ln wtdeah P11rtorul8dfor•nr prupmewllhoul:.. prlor'Mltsl parmlllllonot HRB. ......My_..,.,._.....,ng.......,......_m(llpMnt.y .... ~ ... - .........~t~,,.,, ...cOo HRB. SCALE: 1/20 IT LS:1/20 NOTES: ~~~~~~~~~~~~~~~~~~~~~~ GHI CHL.f: 1. REINFORCEMENT YIELD STRENGTH: FY=420 MPA. 1. ClldNG E0 CHAY CllA cx:fTTHE'.P :fy--420 Mpa 2. CONCRETE COVER: C=50 MM. 2. Ld P BE TONG e.<ovEc=5D mm 3. FOR PARAPET S"fARTER BARS REFER TO DWG. NO. 3. EJE XEM THANH COT THe!P CHO'COA LAN CAN XJN XEM BAN VE SO PIC-TEC-GRR-WVO-J00-18803-B TO PIC-TEC-GRR-WVO.J00-18808-B PROJECTIDVAN: HANOI PILOTLIGHT METRO LINE Sedian Nhon•HantiRailway S1atial TllY£NflOONG sATElOllilTHIfll~M TPHANQI ElatnN~n · Ga Hi NOi Tm.ETtNBANVE: NHUE RIVER CROSSING VU'QT SONG NHUI;: DECK- SA5-SB5 - REINF -1/2 BAN ~T cAU - SA5-SB5 ·COT THr:P - 1 / 2 DRAl'l1NGNO. BANV£SO: PIC-TEC-GRR-WVO-J04-18532-B 38
  • 98.
    Boe Type NofNb~·, Total Shape Bend Boe Type No." 1~fNbo;'.~Total IL ~h~hapeIBend Boe Type No. lifN~;, Total Shape Bend mark ;od of "'"h No Length Code Type Dimensio~s Shape R"' mark ;od of inmh No eng Code Type Dimensions Shope R"' mar< ;od of ioeach No Length Code Type Dimensions Shape R"' "" momb mmb size m.mb momb size memb m•mb " " '' " " " '' " " " " " 002 "' I 146 146 3550 00 A=l550 = OIB rn2 I 2 2 1050 " 2 A=lOO B=l50 IQ 001 DB I B B 1140 " 2 A=IDl 6=l51 [=l15 IF oo; 014 I 40 40 3650 DD Ad6•8 = on rn2 I 2 2 1180 99 2 A=l00B=l9l IQ °" CB I 8 8 1160 99 2 A=86 B=ll1 (=140 D=l1S n001 Dl6 I 58 58 3750 DD Ad149 = °" Dl8 I 40 40 3280 15 I A=14% B=llll (=iD1 ~ °" 016 I 12 12 1340 51 2 A=160 8=160 [=1J g 000 Dl4 I 20 20 5645 25 I AoOOlBo60J[o5750oSJSEo4451-•50J~ m 016 I 20 20 HEAN 6270 15 I Aol134Boil[oJ1J4 ~ °" 016 I ' ' 1100 21 2 Ao490 BolOJ [o48l 4=F '°' Dl4 I 20 20 5590 25 I A=60lB=60lt=515D=515E=4l88-,4469~ m 016 f 20 20 3710 DD A=l709 =HEAN '°" DID I 40 40 1510 15 I A=l14 8=140 C=m-6 ~ rn 012 I 40 40 3850 15 I A=1011B=S05[=11!1 ~ 009 DB I 12 12 1280 89 2 Aol99-•149 So351 [ol15 IF m 012 I 40 40 2050 89 I Ao5l0Bol49[ol4l4 IJdHEAN 11M1•11:Mo• 'Off om I 40 40 5115 99 2 A=lilB=1090-•1103l=l81D=1088-•1155E=19lF=I~ °'' rn2 I 40 40 1350 15 I A=69J B=m (=OJJ ~HEAN ..1=1ll"o.2=11"o.3=108°o.4=11"o.5=1ll0 ' cl=SIO °" DB I 100 100 530 99 I A=l19 B=lOD 6 m DID I 40 40 1350 13 I A=1l15 r== or; Dl2 I ' 4 1110 89 2 AolO~ Bo17~ IQ 000 08 I 4 4 1130 99 2 Ao98 BoJ51 [ol15 IF ko•CA[)o-OTP- '""""°•-OTP- A.-ooCA[)o-011'- c c Total Lengths and Weights Number of members I Type T Type R BENDING DIAMETERS Imm] - Diameters ' ' ID 12 ff fB " '° 22 25 28 32 lB OD Lengths of standard hooks Imm)Tot~l Weight Total Total Weight Total Hoo•sDiameter Length per unit Weight Length per unit Weight lB OB 00 22 " % '"° 120 m ''° "' 25' 288 m,,, (kg/ml (kg) ,,, lkg/m) [kg] 0 IType11 lo,.motors I o I e I 10 I 12 I 14 I 10 I 18 I 10 I 21 I 2s I 28 I i2 I 36 I 40 - F"mes " 22 OD OB 5B " '"° 120 m 190 "' 25' '°" m6 D 0.222 0.00 IType21 - Hoo•• 0 0 0 0 0 0 0 0 0 0 0 0 0 0 1~~;:~·B 91 0395 36.06 IType11 " % '" '" '" m ,,. m "' '°° m '"' rn '"°- B 0 ID 114 0617 70.58 Fromes 0 D D 0 0 0 0 0 0 0 0 0 D D @_ Frame. " % '" '" '" "' ,,. >OD "' '°° m '" rn '"°- ITvoe 2) ITypell 12 811 O.B8B 725.67 1~~;:~· 0 0 0 0 0 0 0 0 0 0 0 0 0 0- 14 rn 1210 448.55 B - Frames 0 0 0 0 0 0 0 0 0 0 0 0 0 0 16 438 1.580 691.38 iT'"•ll - BAR DIMENSIONS18 336 2000 67160 - D DOD 1~~;:~·20 2 470 - THE DIMENSIONS ARE GIVEN ON THE OUTSIDE FIBER OF THE REBAR (SEE BELOW) lB " 00 " " " '°' "° m '" ,., m ,,. ''°- ff 0 22 D 2 980 BOD -THE TOTAL LENGTHS ARE CALCULATED ON THE BASIS OF THE CENTERLINE Frames lB " 00 " " " '°" "° m '" '" m ,,. ''°- ITypell 25 D 3 850 DDD [ISO 3766:2004 - METHOD Bl - - THE BENDING ANGLES ARE GIVEN IN DEGREES - 1~~;:~· 0 0 0 0 0 0 0 0 0 0 0 0 0 0 2B D 4 830 DDD B - Frames 0 0 0 0 0 0 0 0 0 0 0 0 0 0 32 D 6.310 0.00 rl____1 ' iT'"•ll - 36 D 7 990 0.00 ,,- 40 D 9.860 0.00 l'nchorage ;; ;; ;; ;; ;; ;; " DO " '" "' '" '" ,00 - ;t- 0 1Type1) ~j Frames ;; ;; ;; ;; ;; ;; " DO " '" "' '" '" '"ITvpell Type T Type R '-- l'nchorage 0 0 0 0 0 0 0 0 0 0 0 0 0 01Type11 Total Length - Bended: B Frames1211 0 0 0 0 0 0 0 0 0 0 0 0 0 0ITvnell Total Length - St-raight 95' "Total Length lml 2167 Toto! Weight - Bended 1546 ~ Total Weight - Straight 1098 Total Weight (kgl: 2644 ,, Mean Size Imm] GENERAL WEIGHT Kg )/I 14 I I I 2644 I '"""Ml•DTP •~.O.D• -OTP- "'"'"'"-011'- • CLIENT: 11 PROJECT IMPLEMENTATION CONSULTANT FILE NAMEITtN BAN v£ : SCALEITYLe: STATUS TfNHTR6NG: PROJECTIDIJAN : HANOI PILOT LIGHT METRO LINE Sedian Nhon •Hanci RailwayStation • a-io E>Au ru: nrvAN THl,fC Hli;:N DI/ AN PIC-TEC-GRR-ll'No.ID4-1853:Hl_llADWG - Technical Design Tuv£N SOONG sAT E>0 THI THI -E>li:M TP HA N()I Elofn N~n ·Ga Hil NOi • SYSTRAS.A u "' 12/0D'12 Upo..d A.K 3.Maurls ."'"' HRB DESIGNED BY THltr K£ : FORMATKHO BAN ve: DATEINGAY: TTTlEITtN BANVE: NHUE RIVER CROSSING 2A ''"""' 2nd aubmllalan ar lectmlcal daalgn A.K ].Meurls ·-' A.K A1 31/01/10 WQT SONG NHUe ~~ 1C ""'"" """'"' A.K G.Meur1s ·-' CHECKEDBYsoAT: This d'awilg must not be eilhlr IDMed, o:ipi!lcl orOlharwiae rep'Ocluoed DECK - SA5-SB5 - REINF - BAR LIST - 212.s ,. ""'"" UPDATE> A.K ~.Maurls P.Amaud HANOI ME'TROPOUTAN RAIL TRANSPORT PROJECT BOARD G. Maurls In - er h pmrt ar uucl for •nr prupmaWlhoullho prkrwrlllln •• BAN·~ AN oU'ONo sAroO THI HANQI pennllillon ol HRB. BAN ~T cAU · SA5-SB5 · COT lHi:_P - DANH MVC THANH · 21 H 1A 31/01/10 Flllll lssua A.K 3.Maurls ·-'REVISION "'" DESCRIPTION -· ,,.,.,. (Hl'CflE!QI PROJECTDIRECTORIGINAeocDIJ AN : CHIEF CESIGNERCll) NHla,lTHl£'TK£ : Mn vii My kh!lng 4JVC ~RI) d,lng - mol h"rlh lh)c, m(ll phln hrly DR.WING NO.IBANVESO : I3An SO'AElOI '"'y NOi DUNG sCrA.ElOI "'" ..T ailrtil;Mllil~~ Alain B~chereau P.Amaud kllln ~ mll kh!lng41VC..,Mngf'blngvllnbllncilll HRB. PIC-TEC-GRR-WVO-J04-18533-B
  • 99.
    ~ ~ i I!! ~ t ui w.!: F % !I $i !;l 8 ~ uii: B 15 ES1 S1 SAS' SA7' SA6' ------- ~ RifiAR ~DJUSTM EN T f>I U CH NH THANH COT THi;P F ~R p6 CONFLIOT =----- f> IV IXUNGE TPT ®' -@ l@ @ ~ n @)@J 9PARAPET S!~ NO ..,o ~~N Ci~ c~ !!o 9A ,e. ,e. 9&Cl .,, .,, J.&N N N 0 " .. N N N @J ~ L___J 9 L___J 08 = = ~~ ..j '"' ~~ --s 5@, ~ N I ,1 $@) SECTION A-A ' l t ffi1 ~ ~@ 2x2- 016 c::::::: ®0 "' ~- <- '7 @, . . j - N~ N x ~ -)-- "' ~ l I L...---' -II I "' DETAILX CHI Tli;T X SCALE: 1/10 Ti'LS: 1110 I ' ~ o----+----+----------------+----....___....____. Q.IENT: o----+----+----------------+----....___....____. CHOflAu ru: 3" 21/11Y11 Upda111d A. K 2A 3004'11 2nd aubml11lon at'lechnlcal dMlgn A . K 1C ~8110 MAT CATA-A SCALE: 1/20 Ti'LS:1120 HRB n 9 ~g ·-s• I I co o= ' 0 """"x - -"@, 0 n • SA9 S3 SB9 KEY PLAN Ki; HOACH CHfNH SCALE : 11200 TYLS:1/200 PROJECT IMPLEMENTATION CONSULTANT 11 VAN THl,IC HleN DI,/ AN SYSTRAS.A 18 2Ml&'IO Upda111d A. K UPDATED A. K HANOI METROPOLITAN RAIL TRANSPORT PROJECT BOARD 1----+--+-F-lm- -..--------------+,.-.K---4---4------1 BAN DI/AN llWNG IA.TllOTHI llANQI1A 31m1110 REVISION DATE SLrAOOI Nal.Y DESCRIPTION NQI DUNGWAfJOI IHIHl!BI' HIM! CllllClllBI' IOI.! PROJECTDIRECTORIGIAMaocDI/AN: Alain B~cheraau n 0 !5 ·-c;:a. FILE NAA1ElTtN e,1,1/£: DESIGNED BYTH1£TK£ : A. K CHECKED BYSlll.T: G. Maur1s CHIEFDESIGNERCll) NHleMTH1£rK£: P. Amaud SA7' - - - SB7'@ SAS' 586' (@) @ E;I E;j SA5' SB5' I I I , , _ , ~ ,~ H--*---+---11-----ll-----ll--+l--l+--++-*--*---+-~·---++------41--+l--l+--++--41--11-+--'D~1~6 <iiJ§ SCALEITYLE: FORMATKHO BAN VE: A1 --. STAlUS TfNH~G : Teclmical Design DATEINGAY: 31/01/10 Thil <Rwi'IDmUll:notbe eithlrlOlrled,<q>ied«otl'lll'Wile NP'Odiacl ln wtdea h P11rt orul8dfor•nr prupme wllhoul:.. prlor'Mltsl parmlllllonot HRB. ......My_..,.,._.......ng ..... ""'"""-"""oHn'-Y ....~ ...- .........~t~ '"""'" ""' """· .m 014 9 L___J 01 4 ~ '-------' 08 nSECTION B-B MAT CAT 8-8 °tCALE : 1120 TYLl~:1/20 NOTES: ~~~~~~~~~~~~~~~~~~~~~~ GHI CHL.f: 1. REINFORCEMENT YIELD STRENGTH: FY=420 MPA. 1. ClldNG E0 CHAY CllA cx:fTT HE'.P :fy"-420 Mpa 2. CONCRETE COVER: C=50 MM. 2. Ld P ei; TONG M Dv£c=50 mm 3. FOR PARAPET S"fARTER BARS REFER TO DWG. NO. 3. EE. XEM THANH COT THeP CHO' COA LAN CAN XJN XEM BAN veso PIC-TEC-GRR-WVO-J00-18803-B TO PIC-TEC-GRR-WVQ..J00-18808-B PROJECTIDVAN: HANOIPILOTLIGHT METRO LINE Sedian Nhon•HantiRailwayS1atial TIJY£N flOONG sAr ElOTHITHIfll~M TP HANQI Elatn N~n · Ga Hi NOi Tm.E TtNB,1,1~ : NHUE RIVER CROSSING VU'QT SONG NHUI;: DECK- SA6'-SB6' - REINF -1/2 BAN W,TcAU . SA6'-SB6'-c0T THIO.P • 1/ 2 DRAl'l1NGNO.IBANV£SO: PIC-TEC-GRR-WVO-J04-18536-B 3A
  • 100.
    "" T1pe No.fNbo,", Totalll th hape Bend I "" Type No.l01Nb 0 ;, Total h•pe Bend I "" Type No.l:fNbo;, To~;il hope Bend mark ood of "'"h No eng [ode Type Dimensi~ns Shape R" mork ood of inmh No Length Code Type Dimenoions Shape R" mork ood of in,.,h No Length Code Type Dimensions Shape R ''" momb memb "" memb momb size momb memb " " '' " " " '' " " " " " 002 "' ' 142 142 3550 00 A=lS>O = °'9 m2 ' 4 4 "" ,, 2 A=IJO B=l50 IQ 000 °" ' 4 4 1130 ,, 2 A=1B B=351 [=JZS noo; °'' ' '° '° 3650 00 Ad645 = "' m2 ' 2 2 990 99 2 A=ISI B=lli IQ 000 OS ' s s 1140 99 2 A=101 BdSI [=llS n °"' m6 ' 9S 9S 3750 00 Ad149 = on m2 ' 2 2 1040 99 2 A=l9l B=lll IQ "" OS ' s s 1160 99 2 A=!O BdSI [=140 Dd15 n006 °'' ' 20 20 5665 25 ' A=&OlB=O~J[=515D=515E=45ll-••SOJ~ m ow ' '° '° 3280 15 ' A=14iO B=1l11 [=107 ~ °" m6 ' " " 1340 51 2 A=100B=100[=14J gMEAN ·~ ~··~ ~· '°' °'' ' 20 20 5660 25 ' A=&OlB=O~J[=515D=SJSE=440j-•45ll~ m m6 ' 20 20 6270 15 ' A=l1l4 B=Ol C=lll4 ~ m m6 ' 4 4 1100 " 2 A=490B=20J[=41J IbdIMEAN ·~ ·~ ~· ~· '°" om ' '° 40 1510 15 ' A=l7l B=145 C=1l49 ~ m °'6 ' 20 20 3710 00 A=l709 =009 OS ' " " 11BO 99 2 A=9i-•149 B=351 [=l15 n rn °'2 ' 40 40 3850 15 ' A=1171 B=565 [=1781 ~MEAN ·~ ·~ ~· ~· ' °'' °'6 ' 40 40 4765 99 2 ' m °'2 ' 40 40 2050 99 ' A=SlO B=14i C=14l4 ridMEAN al=91'a1=90° ·~ ·~ ~· ~· A=l41 8=1925-·2029 (=1% D=1n6-·20JO E=19J F=l41 m °'2 ' 40 40 1350 15 D A=69J B=l97 (=Oll ~a1=1JS'a1=11"al=1DB'a4=11"a5=1JS' cl=550 °" OS ' 100 100 9JD 99 ' A=l29 B=lO~ 6 m °'" ' 40 40 1350 13 ' A=l115 E::::= ''"'""'-"'- ""'"""-011'- ''"'""'-"'- Total Lengths and WeiqhJ-s Number of members ' Type T Type R BENDING DIAMETERS Imm) - Lengths of standard hooks (mm) Total Weight Total Total Weight Total Di;imeters 6 s m " " " " 20 22 25 28 Diameter Length per unit Weight Length per unit Weight Hooks Diameters I 6 s w " " '6 " 20 22 29 1,1 (kg/ml (kgl 1~1 Ikg/ml [kg) !Type 11 J6 48 60 12 84 96 ms '20 m '90 224 - 0 6 D 0.222 0.00 Frames 24 J2 40 48 96 64 ms '20 m '90 224- !Type 21 s '° 0395 35 58 l'l~~~rear1esl 72 96 '20 '44 '6S "' 2'6 240 264 JOO- Hooks 0 0 D D D D D D D 0 Dw n4 0.617 70.58 !Type 1] @_ 0 - R Frames I 0 0 D 0 D 0 D D 0 D " SD2 O.BBB 71221 Frames D D D D D D D D D D D (Type 21 - (Type 2] " 313 1210 451.21 l'll~~~reart'I 72 96 ''° '44 '6S '92 2'6 240 264 JOO- '6 628 1.580 992.52 R - BAR DIMENSIONS Frames I D 0 D D 0 D 0 D 0 0 " rn 2000 262 40 ITvpe 21 - 20 D 2 470 DDD - THE DIMENSIONS ARE GIVEN ON THE OUTSIDE FIBER OF THE REBAR (SEE BELOW)- D 2 980 DDD22 -THE TOTAL LENGTHS ARE CALCULATED ON THE BASIS OF THE CENTERLINE l'l~~~rear1esl 36 - [ISO 3766·2004 - METHOD Bl 48 60 12 84 96 ms '20 m '9025 D 3 850 000 - - THE BENDING ANGLES ARE GIVEN IN DEGREES <L D 28 D 4 830 000 Frames I 0 0 D 0 D D D D 0 D- (Type 21 J2 D 6.310 000 q, ' 111 l~~~reart'I 36 - 7 990 48 60 12 84 96 ms ''° m '90J6 D 0.00 ,,- R 40 D 9.860 0.00 Frames I D D D D D D 0 D 0 0- ITv~e 21 ~ ' Type T Type R Total Length - Bended: 1197 ;tr l'l~~~rear1esl 65 65 65 65 65 65 12 SD 88 'DO Total Length - St-raight 0 Frames I 0%2 " 0 D 0 D 0 D D 0 D Total Length [ml 2139 (Type 21 Total Weight - Bended 1441 ~ '---- 111 l~~~reart'I 65 65 65 65 65 65 12 SD 88 mo R Total Weight - Straight 10B6 Frames I D D D D D D 0 D 0 0 Total Weight [kg): 2525 ' •; ITv~e 21 Me;m Size Imm) GENERAL WEIGHT kg v!I BS I I 2525 I ""'"'"'" '""""'"•-DTP- '"""""'-DTP- ~ ' CLIENT: II PROJECT IMPLEMENTATION CONSULTANT FILE NMIE ITtN BAN'£: : sr.ALEIrtL(: : STATUSTlNHT~: PRO.ECT IDl/#.! : HANOI PILOT LIGHT METRO LINE Sectkln NOOn - HlllOI Ralway station ~ I CHOEl.Wnr: Tl/ VAA THVC Hll;N DIJ AN PIC-TEC-ORR-WVQ.JIM-1M37-8_2".DWa - Technical Design TU1N WONG sATBO rn1 rnlDlt::M TP HA NOi E>olil1 Nh&i- Ge Hill NOi ~ ~ ~ SYSTRAS.A DESIGNED BY ITlll£'rKE: : FORtMTIKHO eANv£ : DATEINGAY: Tm.EIrt:N BAN v£ : ~ HRB NHUE RIVER CROSSING '~ A.K A1 31/01110 lll1QT SONG NHUo7 ~§ "' "'"'11 2nd submission of lechnlcaldes91 H 3.Maurls ·"""'"" !!s 1C ....10 UM•'"' H IG. Maurta ·"""'"" CIECKED BYsoAT: Thlad-ngrnJlllnolba-IDal-.d,coplacl<r-rapmcilcad DECK - SA6'-SB6' - REINF - BAR LIST - 2 / 2HANOI METROPOUTAN RAIL TRANSPORT PROJECT BOARD q 1B ,...,, UPDATE> ~· jG. Mauria "·"""'"" G. Mauris i1 whole ar in part <rused far any prl4)Ca wihoU; lh8 priorwrillBn BAN ~T cAU - SA6'.SB6' -COT TH~P- DANH MVC n<ANH - 2 Ii ~ 1A 31/01/10 Fi181 l8al8 ~· 3.Mauria ·"""'"" BAN OiiAN DUONG sAT00 Tiii HA N()I permissiondHRB. ! • ""'"" -· PROJECT DIRECTORIGIAMe0c IX/AN : CHIEFDESIGNERIa-io tt11eM Tii1£T KE: : Bin ve nQ' khOng auqc ph6par. d1o11g dllCImQI hlrll tll)c, ml)I phln hay DRA'MNG NO. IBAN v£ SO : I2A~ B REVISION OAJE DESCRIPTION ClilEFOFDl!O IDAn bl), mil khOng o!uqc •II' .Dig~ ~IAln bin all. HRB. PIC-TEC-GRR-WVO-J04-18537-B "''"' "" NQI DUNG SO'A 001 THl~ICE "" Cl(JNIGlllETE Alain Bllchereau P.Amaud
  • 101.
    ~ ~ it i ~ii: 15 ES1 S1 SAB'SA7' SAS' ------REBAR ADJUSTMENT £Heu CHINH THANH COT THeP FOR PT CONFLICT =--- E01 VO'I XUNG EQT PT ~ n I!! ~ uw .!: F % !I $i !;l 8 uB PARAPET .....,,, STARTER BARS ~i. THANH COT THe!P NHO RA ';:l 2x20-D12 aii1s 1~ ___ fo04 2x29-D16 ~ @1150 ®0 ~~ '7@, ..s - N '1 N ~ - ( ( ( I 1 1::::1'.1 T ~I t ..._... - t [j ~ -- t N w '.I § 2x2- D16 c:: -- - ·- '-------- - '-----+;y'----- - - · DETAILX CHITl~TX SCALE: 1/10 T'f'LI;: 1/10 8......,, ~·.......N I CY I I I H I I _Li 0 n @)9 "" ~~ ....,, ~g ~- l:]IA0 ·-N ..... C> N $SECTION A-A MAT CATA-A SCALE: 1/20 TY L1~:1/20 o----+----+----------------+----+---+----< Q.IENT: CHOflAu 11: o----+----+----------------+----+---+----< 3" 21/11Y11 2A 3004'11 HRBUpda111d A. K 2nd aubml11lon at'lechnlcal dMlgn A . K @ 00 .. cg,_ c;::• .... 1C ~8110 18 2Ml&'IO Upda111d A. K 1--=--i;:;=-"--+-"u"'PD,t;=JED;...__ _ _ _ _ _ _ _ _ _ _ _"-,."".K"----==- .;..;..:;;=---1 HANOI METROPOLITAN RAIL TRANSPORT PROJECT BOARD 1A 31m1110 REVISION DATE SLrAOOI Nal.Y F1m -. " ·K BAN DI/AN ellONG sA.TEO THI HA NQI DESCRIPTION NQI DUNGW AfJOI IHIHl!BI HIM! CllllClllBI IOI.! • SA9 S3 SB9 KEY PLAN K~ HO~CH CHfNH SCALE: 1/200 TYLS:1/200 PROJECT IMPLEMENTATION CONSULTANT 11 VAN THl,IC HleNDI,/ AN SYSTRAS.A PROJECTDIRECTORGIAMaocDI/AN: Alain B~cheraau FILE NAA1ElTtNBAN/£: DESIGNED BY TH1£TK£ : A. K CHECKED BYSlll.T: G. Maur1s CHIEF~IGNERCll) NHleMTH1£rK£: P. Amaud SA7 SB7 9 ~~ ';'Ci ...t: ,1 / ( ETAIL X )D CH1nei-x DD ~ D ~1 N Ci SCALE TYLE: FORMATKHO BAN VE: A1 ' ~ -- --,_.--- ~ =- ~ SA6 SBS B5' SB6' SB7' SB6' S ' S2 ES2 SA5 SB5 @) @)032 033 ;;f ;;j 1 i i A-, ,- '"'' 2x20 012 @)-J @1150 016@// BLISTER TYPE 2 >----- >----- J I RO LQN 2 ->----- I REINFORCEMENT SEE DWG. -->----- - ~ I COT THeP XEM BAN ve ->----- >----- >-----'I PIC-TEC-GRR-WVO-J04-18660-B - - - rt->----- -->----- ft: P- ~I I PIC-TEC-GRR-WV0-.104-18661-Bi-:: - --::::: >----- = ~- ~-..- 014 s '-----J014 ~ '-----JDB n SECTION B-8 MAT CAT B-B SCALE: 1120 TY Ll;:1/2D N OTES: ~~~~~~~~~~~~~~~~~~~~~~ GHI CHL.f: 1. REINFORCEMENT YIELD STRENGTH: FY=420 MPA. 1. ClldNG E0 CHAY CllA cx:fTTHE'.P :fy---420 Mpa 2. CONCRETE COVER: C=50 MM. 2. Ld P eeTONG e.<ov£c=50 mm 3. FOR PARAPET S"fARTER BARS REFER TO DWG. NO. 3. EE. XEM THANHCOT THe!P CHO' COA LAN CANXJNXEM BAN 111:SO PIC-TEC-GRR-WVO-J00-18803-B TO PIC-TEC-GRR-WVO-J00-18806-B STAlUS TfNH~G : PROJECT CVAN: HANOI PILOTLIGHT METRO LINE Sedion Nhon•HantiRailwayS1atial Teclmical Oesign DATENGAY: 31/01/10 TIJY£N flOONG sATE0THITHIfll~M TPHA NQI Elatn N~n · Ga Hi NOi Tm.E TtNBANVE: NHUE RIVER CROSSING VU'QT SONG NHUI;: Thil <Rwi'ID mUll:notbe eithlrlOlrled,<q>ied« otl'lll'Wile NP'Odiacl ln wtdea h P11rtor ul8dfor•nr prupmewllhoul:.. prlor'Mltsl parmlllllonot HRB. DECK- SA6-SB6 - REINF -1/2 BAN ~T cAU - SA6-SB6 - COT THi:P - 1 / 2 ......My_..,.,._......."11 ..... ..,.. .... _m(llpMnt.y ....~ ...- .........~t~'"""'" ""' """· DRAl'l1NG NO. BANV£SO: PIC-TEC-GRR-WVO-J04-18540-B 3A
  • 102.
    Boe Type l:BoTo~ol hope Bend I Boe Type No 1,fNbo''.~ Total L thlshape Bend I Boe Type I Bo Tol<il hope Bend I No fbar Length No ofbar Lengthmark '"" of '""'h Bo [ode Type D1mens1ons Shape "" mark '"" of ine"h No eng Code Type D1mens1ons Shape "" m.rk '"" of '""'h Bo Code TJpe Dimensions Shape ""Sile ~•mb memb S11e m•mb memb Sile membmemb "" "" " " " " "" " "" "" " " '°' 011 1 118 118 3550 00 A=l5SO = °'" 012 1 1 1 950 99 1 A=llO B=llO Ikd o" 08 1 8 8 1140 99 1 A=10J BdSI [dl5 n "°' 016 1 5B 58 3750 00 A=l749 = 011 011 1 1 1 1040 99 1 A=l9l B=llO Ikd 0<1 08 1 8 8 1160 99 1 A=BO BdSI [=140 Dd15 n006 014 1 10 10 5685 15 1 A=60JB=00J[=515D=575E=45JB-•450l~ °" 018 1 40 HEAN 40 3280 15 1 A=14iO B=1l11 [=IOJ ~ °" 016 1 11 11 1:J40 51 1 A=ZOO B=160 [=143 g~ ·~ 001 014 1 10 10 5660 25 1 A=60lB=00l[=515D=575E=•469-·45ll~ rn 016 1 10 10 6270 15 1 Adm. B=63 (=lll4 ~ m 016 1 4 4 1100 11 1 A=490 B=10J [=48l yMEAN ~ ·~ OOB 010 1 40 40 1510 15 1 A=11lB=145(=1l49 ~ "" 016 1 10 10 3710 00 Ad109 = 000 08 1 11 11 1180 99 1 A=i9-•149 B=l51 C=l15 n o;; 011 1 40 40 3850 15 1 A=1071 B=50> C=1111 ~MEAN ~ ·~ ' o" 016 1 40 40 4765 99 1 m 011 1 40 40 2050 99 1 A=llO 8=149 C=14l4 yMEA~ al=91•ah9D' ~ ·~ A=147 B=192S-·2019 [=1% 0=1916-·1030 E=19l F=141 m 011 1 40 40 1350 15 0 A=09J B=l91 (=67l ~a1ol35"a1o11"alorni"a4o11"a5oll5" r1o550 on 08 1 100 100 5JO 99 1 Ao1198oJOI b OJ9 010 1 40 40 1350 13 1 Aol115 E::::=i 01; °" 1 4 4 990 99 1 A=mB=150 Ikd 040 08 1 4 4 nm 99 1 A=il B=Jll C=l15 n '"""""•-m- ""'"'•-OTP- '"'''"•-m- c c Total Lengths and Weights Number of members 1 Type T Type R BENDING DIAMETERS Imm) ~ Lengths of standard hooks Imm) Total Weight Total Total Weight Total Diameters 6 8 10 11 14 16 18 10 11 15 18 Diameter Length per unit Weight Length per unit Weight Hooks Diameters I 6 8 10 12 14 16 18 10 11 25 ,,, [kg/ml [kg] ,,, (kg/ml lkg) (Type 1) J6 48 60 11 84 96 108 110 131 150 114 ~ 0 6 0 0.222 0.00 Frames 14 J1 40 48 56 64 108 110 131 150 114~ !Type 21 8 90 0 395 35.56 ~(~~~re0 f1esl 72 96 120 144 168 192 116 240 164 JOO ~ Hooks 0 0 0 0 0 0 0 0 0 0 010 114 0617 70.56 (Type 1) 0 ~ R @_ Frames I 0 0 0 0 0 0 0 0 0 0 11 9JO 0.888 825.70 Frames 0 0 0 0 0 0 0 0 0 0 0 !Type 2) ~ (Type 2) 14 111 1210 274.55 111 (~~~'e"f1esl 72 96 120 144 168 192 116 240 164 JOO ~ 618 1.580 992 52 R16 ~ BAR DIMENSIONS Frames I 0 0 0 0 0 0 0 0 0 0 18 1J1 2000 262 40 ITvne 2) ~ 10 0 2 47D 000 - THE DIMENSIONS ARE GIVEN ON THE OUTSIDE FIBER OF THE REBAR [SEE BELOW]~ 11 0 2 980 000 - THE TOTAL LENGTHS ARE CALCULATED ON THE BASIS OF THE CENTERLINE fl(~~~re"f1e'I 36 ~ 0 3 850 0 00 1150 3766:2004 - METHOD Bl 48 60 12 84 96 108 120 131 15015 ~ 4 830 - THE BENDING ANGLES ARE GIVEN IN DEGREES ~ 0 Frames I 028 0 0 00 0 0 0 0 0 0 0 0 0~ !Type 2) J1 0 6.310 0.00 ~ '~ fl(~~~'e"f1e'I 36 48 60 11 84 96 108 120 131 150J6 0 7 990 0.00 ,,~ R 40 0 9.660 0.00 Frames I 0 0 0 0 0 0 0 0 0 0~ ITvoe 2) ~ > Type T Type R Total Length - Bended: 1197 ;tf- fl(~~~'e"f1e'I 65 65 65 65 65 65 11 80 88 100 Total Length- Straight. 0 Frames I 0914 0 0 0 0 0 0 0 0 0 0 Total Length [ml 2121 !Type 2) • '---- fl(~~~'e"f1e'I 65 65 65 65 65 65 11 80 88 100Total Weight - Bended· 1441 R Total Weight - Straight 1022 Frames I 0 0 0 0 0 0 0 0 0 0 Total Weight [kg): 2461 ,, ITvoe 2) Mean Size Imm) GENERAL WEIGHT kg ';i__I 137 I I 2461 I "'"'"""'"' ""'''°•-OTP- '"'''°'-OTP- ~ ' CLIENT: II PROJECT IMPLEMENTATION CONSULTANT FILE NMIEITtN BAN v£ : sr.ALEIrtLe: STATUSTlNHT~: PRO.ECTIDlfAN : HANOI PILOT LIGHT METRO LINE Sectkln NOOn - HlllOI Ralway station • I CHOEl.Wnr: Tl1 VAA THVC Hll;N DIJAN PIC-TEC-ORR-WVQ.JIM-1BM1-8_2oU!Wa - Technical Design TU1N WONG sATBO rn1 rnlDlt::M TP HA NOi E>olil1 Nh&i- Ge Hill NOi ~ ~ ~ SYSTRAS.A DESIGNED BYITlll£'rKE: : FORtMTIKHO eANv£ : DATEINGAY: Tm.EI'Tt:N BANv£ : ~ HRB NHUE RIVER CROSSING '~ A.K A1 31/01110 lll1QT SONG NHUo7 ~§ "' "'"'11 2nd submission of lechnlcal des91 H 3.Maurls ·"""'"" !!s 1C ....10 UM•1"d H IG. Maurts ·"""'"" CIECKED BYsoAT: Thlad-ngrnJlllnolba-IDal-.d,coplaclor-rapmcilcad DECK - SA6-SB6 - REINF - BAR LIST -1 I 2HANOI METROPOUTAN RAIL TRANSPORT PROJECT BOARD q 1B ,...,, UPDATE> ~· jG. Maurie "·"""'"" G. Mauris i1 whole ar in part or used for any prl4)Ca wihoU; lh8 priorwrillBn BAN ~T cAU - SA6-SB6 -COT TH~P- DANH Ml,IC TI-tANH -1 / ~ 1A 31/01/10 Fi18118a111 ~· 3.Mauris ·"""'"" BAN OiiAN DUONG sAT00 1111 HA N()I permissiondHRB. ! • ""'"" -· PROJECT DIRECTORIGIAMe0c IX/AN : CHIEFDESIGNERIa-iott11eM Tii1£T KE: : Bin ve nQ" khOng auqc ph6p ar. d1o11g dllCI mQI hlrll tll)c, ml)I phln hay DRA'MNGNO.IBANv£ SO : I2A~ B REVISION "" DESCRIPTION ClilEFOFDl!O IDAn bl), mil khOng o!uqc •II' .Dig~ ~IAln bin all. HRB. PIC-TEC-GRR-WVO-J04-18541-B "''"' "" NQI DUNG SO'A 001 THl~ICE "" Cl(JNIGlllETE Alain Bllchereau P.Amaud
  • 103.
    ~ ~ it i ~ii: 15 ES1 S1 SAS'SA7' SA6' -REBAR ADJUSTMENT EllEU CH]NH TI-IANH COTTHEP FOR PT CONFLICT =-- EIOl~EIOTPT t' n@ I!! ~ uw .!: F % !I $i !;l 8 uB ®' PARAPET ee~ -=?&STARTER BARS ..TI-IANH COT THEP NHO RA ';: (§ N Ci 2x20-D12 @150 (ojj 0 DETAILX CHI Tl~TX SCALE: 1/10 TYLIS: 1110 10 0 ~~ '1'• ~~ -TCi..N ..N 0 n @9 '°"' .. ~- ..,g ....,, Clo 'iii-.. ·- ..N ...... N C") SECTION A-A M~T CAT A-A SCALE: 1f20 TY LIS:1120 o--~-+-~~-+-~~~~~~~~~~~~~~-+-~~~...._~~...._~~--< Q.IENT: o--~-+-~~-+-~~~~~~~~~~~~~~-+-~~~...._~~...._~~--< CHOflAuru: 3" 21/11Y11 2A 3004'11 HRBUpda111d A.K 2nd aubml11lon at'lechnlcal dMlgn A . K 1C ~8110 ® !8,_ c;:• .... ...CIO ,.........-...... 18 2Ml&'IO Upda111d A. K UPDATED A. K HANOI METROPOLITAN RAIL TRANSPORT PROJECT BOARD 1----+---+-F-lm--..--------------+-,.-.K---4---4-------1 BAN DI/AN llWNG sA.rllOTHI llANQI1A 31m1110 REVISION DATE SLrAOOI Nal.Y DESCRIPTION NQI DUNGWA9°' IHIHl!BI' HIM! CllllClllBI' IOI.! • SA9 S3 SB9 KEY PLAN K~ HO~CH CHfNH SCALE: 1/200 TYLl;:1/200 Zx20-D16 @1150 PROJECT IMPLEMENTATION CONSULTANT 11 VAN THl,IC HleN DI,/ AN SYSTRAS.A PROJECTDIRECTORGIAMaocDI/AN: Alain B~cheraau n 9 !g ·-c;:ia. "* FILE NAA1ElTtNBAN/£: DESIGNED BYTH1"1K£: A. K CHECKED BYSlll.T: G. Maur1s CHIEF~IGNERCll) NHleMlll1£rKe: P. Amaud ~SAS' SBS' 0 s:::t~ 9i.... "'N ,1 ,·1 ETAILX )'[D CHITIETX DD ~ D ~1 ~ D SCALETYLE: FORMATKHO BAN VE: A1 SAT SBT @ @)032 033 ~1 ~1 SA6' SB6' ,---.> ,----,' , r- Ir 2x20- 012 @1150 s- 016® 014 ~014 7 014 8 SECTION B-B MATCATB-B STAlUS TfNH~G : Teclinical Oesign DAlENGAY : 31/01/10 • SCALE : 1f20 TYLIS:1/20 NOTES: ~~~~~~~~~~~~~~~~~~~~~~ GHI CHL.f: 1. REINFORCEMENT YIELD STRENGTH: FY=420 MPA. 1. ClldNG El0 CHAY CllA cx:fTTHE'.P :fy--420 Mpa 2. CONCRETE COVER: C=50 MM. 2. Ld P BE TONG e.<ov£c=50 mm 3. FOR PARAPET S"fARTER BARS REFER TO DWG. NO. 3. eeXEM THANH COT THe!P CHO'COA LAN CAN XJN XEM BAN veso PIC-TEC-GRR-WVO-J00-18803-B TO PIC-TEC-GRR-WVO-J00-18808-B PROJECT CVAN: HANOI PILOTLIGHT METRO LINE Sedian Nhon•HantiRailway S1atial TIJY£NElOONGsATElOTHITHIEllEM1l'HANQI ElatnN~n · Ga Hi NOi Tm.ETtNBAN1£: NHUE RIVER CROSSING VU'QT SONG NHUI;: Thil <Rwi'ID mUll:notbe eithlrlOlrled,<q>ied«otl'lll'Wile NP'Odiacl ln wtdeah P11rtorul8dfor•nr prupmewllhoul:.. prlor'Mltsl parmlllllonot HRB. DECK - SA7'-SB7' - REINF -1 / 2 BAN W,TcAU • SA7'-SB7'-c0TT1-li:_P • 1/ 2 DRAl'l1NGNO.BANV£SO: PIC-TEC-GRR-WVO-J04-18544-B 3A ......My_..,.,._.......ng ..... ""'"""_""",..,,t.y.... ~ ... - ......... ~f.... YGnb6n ... HRB.
  • 104.
    Bar Type NoI fNboar To~ol Len th hape Be~d mark and of l~,.,h No g Code Type s11e rn•mb memb ODZ 012 1 236 236 3550 00 A=llS~ I Shape = 006 014 1 20 20 5720 25 1A=6~lB=00lC=575D=515E=•SlB-·45il~ :,•'";.i."'~·+·~ 007 014 1 20 20 5715 25 1 A=O~J B=OOJ C=5J5 D=575 E=45ll->4111~ MEAN ~'""l••>fo~+·~ ooa 010 1 40 40 1510 15 1 A=m B=141 [=1l49 009 08 1 12 12 1130 99 2 A=99 B=351 [d15 " 2 A=147 B=1150-•1n5 [=190 D=1151-•1ni E=19J F=I~" MEAN aM35" a1=11" a MW a4=1Z" al=IJS" '~ 011 D16 1 40 40 4585 99 ~'""l••>fo~+·~ F b013 08 1 80 BO 530 99 1 A=11i B=l~O 015 012 1 4 4 990 99 2 A=11~ B=1S~ 016 D12 1 2 2 950 99 2 A=15~ B=15~ 017 012 1 2 2 104D 99 2 A=1H 8=15~ IQ IQ IQ Total Lengths and Weights Number of members 1 Type T Total Weight- Total Diameter Length per unit We19ht Im] Ikg/ml lkg) ~ ~ f-~D--+-_Dc.1c1c1-+_Dc.DcD---j a n o395 31.16 ~ t---+-----t-----j 1D 114 0 617 70.58 ~ f----+----+-----j 12 1136 0.888 1008.54 ~ f----+----+-----j 14 229 1210 276.73 ~ t--4cDl~+--,c.5cBcD--t~6lc1c5cD-i ~ 18 131 2 DOD 262 40 ~ f----+----+-----j 20 0 2 470 0 00 ~ f----+----+-----" 22 0 2 980 0 00 ~ t-~-+-~=--t-~---1 25 0 3 850 0 00 ~ f----+----+-----j 28 0 4 830 0 OD ~ f----+----+-----j ~ f--D--+-~6.cl1cD-+_Dc.DcD---j 36 0 7 990 O.OD ~ t---+-----t-----j 40 0 9.860 0.00 ~ ~--~--~--- Total Length ,,, Type R Weight- per unit [kg/ml Total We19ht (kgl Type T Type R Total Length - Bended: Total Lengt-h - Straight-. Total Length Im] Total Weight - Bended· Total Weight - Stra19ht Total Weight (kg): 1180 2D92 1426 861 2287 Mean Size [mml I 133 2A 30J04111 2nd submission of lechnlcal des91 A. K 3. Maurie . Arnaud GENERAL WEIGHT kg 2287 CLIENT: CHOEl.Wnr: "" Bar Tjpe No llNb~'.~Mol llen th~hapelBend mark and of ln',.,h No. 9 [ode Type Sile membmernb 031 018 1 40 40 3280 15 1 A=1496 B=ll11 [=801 032 016 1 20 20 6270 15 1 A=l1l4 B=Ol (=l134 033 016 1 20 20 3710 OD 036 012 1 40 40 3850 15 1 A=1011 B=565 [=1181 037 D12 1 40 40 2050 99 1 A=ll~ B=149 (=14l• D3B D12 1 40 40 1350 15 0 A=OH B=li1 [=01J rMSO Ol9 010 1 40 40 1350 13 1 A=IZ15 040 DB 1 4 4 1130 99 2 A=9i B=lSI (=lZS 041 DB 1 8 B 1140 99 2 A=rn1 B=lSI [=J15 042 DB 1 8 B 1160 99 2 A=IO B=lSI [=140 D=l15 BENDING DIAMETERS (mm) I Shope = Diameters 6 8 10 12 14 16 18 20 22 25 28 Hooks [Type 11 Frames !Type 2] Hooks [Type 11 Fr~me5 [Type 21 36 48 24 32 60 72 84 96 108 120 132 150 224 40 48 56 64 108 120 132 150 224 BAR DIMENSIONS - THE DIMENSIONS ARE GIVEN ON THE OUTSIDE FIBER OF THE REBAR ISEE BELOW] - THE TOTAL LENGTHS ARE CALCULATED ON THE BASIS OF THE CENTERLINE (ISO 3766:2004 - METHOD Bl - THE BENDING ANGLES ARE GIVEN IN DEGREES "" PROJECT IMPLEMENTATION CONSULTANT Tl/ VAA THVC Hll;N DIJ AN SYSTRASA HRB 1C 2Ml8110 UMated A. K IG. Maurie .Arnaud f-~,."---1",..=.,~,'-~u~PDA=rn>"'---------------l~~~K,___F~~....=,~~·-1,,~<~AmmO="--l HANOI METROPOUTAN RAIL TRANSPORT PROJECT BOARD 1A 31101110 Fi18118a111 A.K 3.Mauria .Arnaud BANDl'ANDU'ONGsAT001HIHA.NQI REVISION OATE DESCRIPTION IJESaEDBJ aEKEllBJ ClilEFOFDl!O SO'AEJOI NGA.Y NQI DUNG 80'AD01 THl~ICE BT Cl(JNIGlllEJE PROJECT DIRECTORIGIAMe0c IX/AN : Alain Bllchereau Bor Type No lofNboar Totol Len th Shape Bend mark .nd of inmh No g Code Tjpe me memb rnemb I Shape "" O'J1 016 1 12 12 1340 51 2 A=lOO B=16~ C=24l 071 016 1 4 4 1100 21 2 A=49D B=10l [=48l Lengths of standard hooks Imm) I Diameters 6 10 12 14 16 18 20 22 25 120 144 168 192 216 240 264 300 D @_ Frames 0 0 0 0 0 0 o o O O ~ t--~[l"y~p_•c1[-+-+--t--t--t--+---t--+-+--t--t "1~~~re~fi"' 72 96 120 144 168 192 216 240 264 300 Frames (Tvne 2] 48 0 0 0 0 0 0 0 0 60 72 84 96 108 120 132 150 D F""' D f--~il"YLPc'c1[-+-D-+-D-+-D-t-D-t--D-+-D--t-D-+-D-+-D-+---l nchar~ge' 36 46!Type 1) 60 72 84 96 108 120 132 150 L Frames ITvoe 2] Frames 0 0 0 0 0 0 0 0 65 65 65 65 65 72 BO 8B 100 !Type 2] ......__e--+~ccllho~c.~s,+-< 5 - 5 +--+---l-+--+-f--+--+-f--~ !Type 11 65 65 65 65 65 72 BO 88 100 0 0 0 0 0 0 0 0 Frames ITvoe 2] FILE NMIEITtN BAN v£ : DESIGNED BYITlll£'r KE: : A<K CIECKED BYsoAT: G. Mauris CHIEFDESIGNERIa-iott11eM Tii1£T KE: : P.Amaud 0 0 0 0 0 0 0 0 FORtMTIKHO eANv£ : A1 STATUSTlNHT~: Technical Design DATEINGAY: 31/01110 Thladr-ingrnJlllnolba-IDar-.d,coplaclor-rapmcilcad i1 whole ar in part or USlld for any Pll4XM8 wihoU; lh8 priorwrillfll"I permissiondHRB. Bin ve nQ' khOng auqc ph6p ar. dlol'IQ dllCI mQI hlrll tll)c, ml)! phln hay IDAn bl), mil khOng o!uqc •II' .Dig~ ~IAln bin all. HRB. PRO.ECTDlfAN: HANOI PILOT LIGHT METRO LINE Sectkln NOOn - HlllOI Ralwaystatlon TU1N WONG sATBO rn1 rnlDlt::M TP HA NOi E>olil1 Nh&i- Ge Hill NOi TnlElltNB!Nv!' NHUE RIVER CROSSING lll1QT SONG NHUo DECK - SA7'-SB7' - REINF - BAR LIST - 1 / 2 BAN ~T cAU - SA7'-SBT -COT TH~P- DANH Ml,IC TI-tANH - 1 / ~ DRA'MNGNO.IBAN v£ so: IPIC-TEC-GRR-WVO-J04-18545-B 2A
  • 105.
    ~ ~ it i ~ii: 15 ES1 S1 -___....__- R~~ADJUSTM~T DI UCHNH THANH llieP FOR PT CONFLICT =--- OOIV~fl()TPT ~ n@ I!! ~ uw .!: F % !I $i !;l 8 uB @' @) 10 PARAPET N .,, o .,..,, ~-..."'... ®O ~~ - t- '7@,_,_ N~ N "'.':' ( ( ( 11 ..----- I~ - - t ~ ~ [ r w ~ § 2x2- D16 ~ c:: 3" 21/11Y11 2A 3004'11 -'----- '----·- - - ....__ ~ '----·- - · DETAILX CHI Tl~TX SCALE: 1/10 TYLl;:1/10 Upda111d A.K 2nd aubml11lon at'lechnlcal dMlgn A . K 8 0 n @)9 ® ~~ ~~ :e;!.,, ~g9A 9A ...,.Ca 9A ·-Cl C> ·- <;:Gil..... .... .;g .,, .. ... .; .... 8 SECTION A-A MA"Jc~f:T,f--A TYLS:1/20 I ( ( I ----' I _J_ HRB 1C ~8110 18 2Ml&'"IO Upda111d A. K 1--=--i;;;=-"--+"u""PD,t;=JED;...__ _ _ _ _ _ _ _ _ _ _ _"-,,""_K"----==-.;.;..;;;= ---1 HANOI METROPOLITAN RAIL TRANSPORT PROJECT BOARD 1A 31m1110 REVISION DATE SLrAOOI Nal.Y F1m - . ,,_ K BAN DI/AN allONG sA.TaO THI HA NQI DESCRIPTION NQI DUNGWAfJOI IHIHl!BI' HIM! CllllClllBI' IOI.! • SA9 S3 SB9 KEY PLAN K~ HO~.CH cHrNH SCALE: 1/200 TYLS:1/200 PROJECT IMPLEMENTATION CONSULTANT Tl1 VAN THl,IC HleN DI,/ AN SYSTRAS.A PROJECTDIRECTOR GIAMaocDI/AN: Alain B~cheraau n €} !i ·-<;:A REBAR ADJUSTMENT D1eu CHINH THANH cOr llieP FOR PT CONFLICT "1 001 VOi XUNG fl()T PT FILE NAA1ElTtN e,l,i/£: DESIGNED BY TH1£TK£ : A. K CHECKED BYSlll.T: G. Maur1s CHIEF~IGNERCll) NHleMlll1£rK£: P. Amaud SA6 SB8 .....Ci~ .....t: ,1 ( ETAILX )~D CHI TIETX DD ~ D gl N c; SCALETYLE: FORMATKHO BAN VE: A1 SA7 SB7 <@) @)032 033 51 gj 85' SB6' SB7' SB6' S ' S2 ES2 SA6 SB6 I , I l , ---, ---, ---, ---, ,-,- " r- --"' Ir i---- I--- ~ _i--- 2x20 - D12 @l -[6.1150 016 @ § BLISTER TYPE 1 -~ /R0 L~ 1 i---- i---- I 1 REINFORCEMENT SEE DWG. - rn: ~ COT THePXEM BAN v£I---" ~ PIC-TEC-GRR-WVO-J04-18662-B - I---" - i--- i--- IL---- --~ It: ~ PIC-TEC-GRR-WVO-J04-18663-B -- - --:::: i-- P- 1--- = .L 014 ~ .____} 014 007 .____} SECTION B-8 MAT CAT B-B os 8 n •SCALE : 1/20 TY LS:1/20 NOTES: ~~~~~~~~~~~~~~~~~~~~~~ GHI CHL.f: 1. REINFORCEMENT YIELD STRENGTH: FY=420 MPA. 1. ClldNG DO CHAY CllA cx:fTTHE'.P :fy---420 Mpa 2. CONCRETE COVER: C=50 MM. 2. Ld PeeTONG M Ov£c=50 mm 3. FOR PARAPET S"fARTER BARS REFER TO DWG. NO. 3. DE. XEM THANH COT THe!P CHO'COA LAN CAN XJNXEM BAN v£SO PIC-TEC-GRR-WVO-J00-18803-B TO PIC-TEC-GRR-WVO-J00-18808-B STAlUS TfNH~G : PROJECT CVAN: HANOI PILOTLIGHT METRO LINE Sedian Nhon•HantiRailwayS1ation Teclmical Oesign DAlENGAY: 31/01/10 TIM:N flOONG SAT 00 THITHIfll~M TP HA NQI Batn N~n · Ga Hi NOi Tm.ETtNB,l,iVE: NHUE RIVER CROSSING VU'QT SONG NHUI;: Thil <Rwi'ID mUll:notbe eithlrlOlrled,<q>ied«otl'lll'Wile NP'Odiacl ln wtdeah P11rtorul8dfor•nr prupmewllhoul:.. prlor'Mltsl parmlllllonot HRB. DECK- SA7-SB7 - REINF -1/2 BAN ~T cAU - SA7-SB7 ·COT THi:P - 1 / 2 ......My_..,.,._......."11 ..... ..,.. .... _m(llpMnt.y ....~ ...- .........~t~'"""'""'""""- DRAl'l1NGNO. BANVESO: PIC-TEC-GRR-WVO-J04-18548-B 3A
  • 106.
    8oc T1pe f:'oTotal L thlShape Bend I 8oc Type l:"o Totol hope Bend I 8oc T1pe No ~"fNbo''.~Totol llen th~hapel Bend I No fbor No fbar Lengfhmark '"" of ""'h No '"9 [ode Type Dimensions Shope "" mark '"" of mmh No Code Type D1mens1ons Shape "" mar• '"" of ""'h No. 9 [ode Type D1mens1ons Shape ""s11e memb memo me memb memb s11e memb memb " " " " "" "" "" " " "" "" " °"' 012 1 236 236 3550 00 AdSIO = m 018 1 40 40 3280 15 1 A=1496 B=llll (=8D1 ~ °" 016 1 12 12 1340 51 2 A=16D 8=100 [=14l g 006 014 1 20 20 5720 25 1 A=00lB=0Dl[=515D=575E=45l8-·•SBl~ m 016 1 20 20 6270 15 1 Aol134 Bo6l Colll4 ~ 012 016 1 4 4 1100 21 2 Ao•9D BolDl [o,Bl 4=FMEAN ·~ .,. -·~· 001 014 1 20 20 5715 25 1 Ao0QlBoODJ[o515DoSJSEo45Jl-••S71~ 033 016 1 20 20 3710 00 AoJJOi =MEAN ·~ ""' -·~· '°" 010 1 40 40 1510 15 1 A=l1l B=l45 C=1l49 ~ m 012 1 40 40 3850 15 1 A=1D12 B=S6S [=1181 ~ 000 08 1 12 12 1130 99 2 A=99 BdSI (=l15 IF m 012 1 40 40 2050 99 1 A=SlO 8=149 C=14l4 ~<Xlo91"<>1o90• " 011 016 1 40 40 4585 99 2 AolJ8o1150-•1915[o196Doll51-•1910Eo19Jfo1~ 030 012 1 40 40 1350 15 0 Ao;iJ BoJj) (oOJJ ~MEAN a1=1JS"aZ=71"al=103"a•=l1"a5=1JS" rl=55~ ·~ ""' -·~· ' OB DB 1 BO BO 530 99 1 A=l19 B=lO~ 6 m 010 1 40 40 1350 13 1 A=1115 e:::=i °" 012 1 4 4 990 99 2 A=l10 B=ISO Ikd °'° 08 1 4 4 1130 gg 2 A=9B B=l51 C=l15 IF 016 012 1 2 2 950 99 2 AollO BolSO Ikd 0'1 08 1 8 8 1140 99 2 Ao107 BoJ51 CoJ15 IF 011 012 1 2 2 1D40 99 2 A=lil B=ISO Ikd 8'2 C8 1 8 8 1160 99 2 A=IG B=l51 C=140 O=l15 n """'•-OT>- '"""" -011'- "'""'"-OTP- c c Total Lengths and Weights Number of members 1 Type T Type R BENDING DIAMETERS Imm) ~ Lengths of standard hooks Imm) Total Weight- Total Total Weight Total Diameters 6 8 10 12 14 16 18 20 22 25 28 Diameter Length per unit- Weight Length per unit- Weight Hooks Diameters 6 8 10 12 14 16 18 20 22 25 ,,1 [kg/ml [kg) '"' (kg/ml lkg) [Type 1) 36 48 60 12 84 96 108 120 132 150 224 ~ D 6 0 0.222 0.00 Frames 24 32 40 48 56 64 108 120 132 150 224~ !Type 2] 8 19 0 395 31.16 11nchor;iges 72 96 120 144 168 192 216 240 264 300 ~ Hooks 0 0 0 0 0 0 0 0 0 0 0 [Type 1) 10 114 0617 70.58 [Type 11 D ~ R @_ Frames 0 0 0 0 0 0 0 0 0 0 12 1136 0.888 1DOB.54 Fr;imes 0 0 0 0 0 0 0 0 0 0 0 !Type 2] ~ [Type 2) 14 229 1210 276.73 ~nchoroges 12 96 120 144 168 192 216 240 264 300 ~ 403 1.580 637 50 R (Type 1) 16 Frames~ BAR DIMENSIONS 0 0 0 0 0 0 0 0 0 0 1B 131 2 000 262 40 ITvne 2] ~ 20 0 2 470 000 - THE DIMENSIONS ARE GIVEN ON THE OUTSIDE FIBER OF THE REBAR [SEE BELOW]~ 22 0 2 980 000 - THE TOTAL LENGTHS ARE CALCULATED ON THE BASIS OF THE CENTERLINE !'lnchor<iges~ !ISO 3766:2004 - METHOD Bl 36 48 60 12 84 96 10B 120 132 15025 0 3 850 000 [Type 1) ~ 4 830 - THE BENDING ANGLES ARE GIVEN IN DEGREES ~ D Frames28 0 000 0 0 0 0 0 0 0 0 0 0~ !Type 2] 32 0 6.310 0.00 ~ '~ f1nchoroges 36 48 60 12 84 96 108 120 132 15036 0 7 990 0.00 09 (Type 1) ~ R Frames40 0 9.860 0.00 D 0 0 0 0 0 0 0 0 0~ ITvoe 2] ~ .Type T Type R !'lnchor<iges Total Length - Bended: 1180 ,:tf- [Type 1) 65 65 65 65 65 65 12 BO BB 100 Total Lengt-h - Straight-. D Framesm a 0 0 0 0 0 0 0 0 0 0 Total Length Im] 2092 !Type 2] • '--- f1nchorages 65 65 65 65 65 65 12 BO BB 100Total Weight - Bended· 1426 R (Type 1) Total Weight - Straight 861 Frames 0 0 0 0 0 0 0 0 0 0 Total Weight (kg): 2287 ,, ITvoe 2] Mean Size [mml GENERAL WEIGHT kg Yi__I 133 I I 2287 I "'''"""'!' .,..,.,. -011'- '"'"""-OTP- ~ ' CLIENT: II PROJECT IMPLEMENTATION CONSULTANT FILENMIEITtN BAN'£: : sr.ALEIrtL(: : STATUSTlNHT~: PRO.ECTIDl/ #.! : HANOI PILOT LIGHT METRO LINE Sectkln NOOn - HlllOI Ralway station ~ I CHOEl.Wnr: Tl1 VAA THVC Hll;N DIJ AN PIC-TEC-ORR-WVQ.JIM-1BMIMl_JIA.DWa - Technical Design TU1N WONG sATBO rn1 rnlDlt::M TP HA NOi E>olil1 Nh&i- Ge Hill NOi ~ ~ ~ SYSTRAS.A DESIGNED BYITlll£'rKE: : FORtMT KHOeANv£ : DATENGAY: Tm.EITtN BAN v£ : ~ HRB NHUE RIVER CROSSING '~ A.K A1 31/01110 lll1QT SONG NHUo7 ~§ "' "'"'11 2nd submission of lechnlcaldes91 H 3.Maurls ·"""'"" !!s 1C ....10 UM•,_, H IG. Maurts ·"""'"" CIECKED BYsoAT: Thladr-ingrnJlllnolba-IDar-.d,coplacl<r-rapmcilcad DECK- SA7-SB7 - REINF - BAR LIST-1I2HANOI METROPOUTAN RAIL TRANSPORT PROJECT BOARD q 1B ,...,, UPDATE> ~· jG. Maurie "·"""'"" G. Mauris i1 whole ar in part <r used far any prl4)Ca wihoU; lh8 priarwrillBn BAN ~T cAU - SA7-SB7 -COT TH~P- DANH Ml,IC TI-tANH -1 / ~ 1A 31/01/10 Fi18118a111 ~· 3.Mauris ·"""'"" BAN OiiAN DUONG sAT00 1111 HA N()I permissiondHRB. ! • ""'"" -· PROJECTDIRECTORGIAMe0c IX/AN : CHIEFDESIGNERIa-iott11eM Tii1£T KE: : Bin ve nQ'khOng auqc ph6p ar. dlol'IQ dllCI mQI hlrll tll)c, ml)I phln hay DRA'MNGNO.IBAN v£ SO : I2A~ B REVISION "" DESCRIPTION ClilEFOFDl!O IDAn bl), mil khOng o!uqc •II' .Dig~ ~IAln bin all. HRB. PIC-TEC-GRR-WVO-J04-18549-B "''"' "" NQI DUNG SO'A 001 THl~ICE "" OONIGlllETE Alain Bllchereau P.Amaud
  • 107.
    ~ ~ i I!! ~ t ui w.!: F % !I $i !;l 8 ~ uii: B 15 ES1 S1 SAS' SA7' SA6' =--- PARAPET se:ii: STARTER BARS ~i. N 0 THANH COT THEP NHO RA <;:l ®0 :Q ~ "?@, -.t- N~ N x ~ ( ,, ' ( ( ( ' ~ I i 1111~ l.-----! - t !.....- ,_ ~ ,___ ~ ~ l,j @> 2x2-D16 c:: _ ,,______ ~ -- ~~~ ~ - - ~· DETAILX CHITl~TX SCALE: 1/10 TYLS: 1/10 100.,..,, 9ii0 N >C N ( ~ENT ~fl1£U CHlNH IBANH c0TTHEP FOR PT CONFLICT E>Ol~ElOTPT ~ @ n @9 ~~ ~§; ...::;;: ~g'TA 9& i:jii... .. ,_ .... N ..... 0 >C N .... @ - SECTION A-A M,;TCATA-A ( - -U_ SCALE: 1/20 TYLS:1/20 o----+----+----------------+----...,___...,____. Q.IENT: o----+----+----------------+----...,___...,____. CHOflAuTU: 3" 21/11Y11 2A 3(WU11 HRBUpda111d A.K 2nd aubml11lon at'lechnlcal dMlgn A . K 1C ~8110 n ® ~g .~ c;:a. ... ....10 mo ..-..... • SA9 $3 $89 KEY PLAN K~ HO~CH CHfNH SCALE: 1/200 TYLS:1/200 PROJECT IMPLEMENTATION CONSULTANT TU VAN THl,IC HleN DI,/ AN SYSTRAS.A 18 2Ml&<'IO Upda111d A. K UPDATED A. K HANOI METROPOLITAN RAIL TRANSPORT PROJECT BOARD 1----+---+-F-lm--..--------------+-,,-.K---4---4------1 BAN DI/AN llWNG sA.rllOTHI llANQI1A 31m1110 REVISION DATE SLrAOOI NQl,y DESCRIPTION NQI DUNGWAfJOI IHIHl!BI' HIM! CllllCIDBI' IOI.! PROJECTDIRECTORGIAMaocDI/AN: Alain B~cheraau FILE NAA1ElTtN e,1,1/£: DESIGNED BYTH1£TK£: A. K CHECKED BYSlll.T: G. Maur1s CHIEF ~IGNERCll) NHleMTH1£rK£: P. Amaud SA9' ___ $89' ~ el~ 9•..s:: ~ 11_ AILX )DET CHITle!TX DD <§x§X§) D ~1 'f" [f' SAS' SBB' @ @032 033 ;;[ ;;[ I I I 11~_ . ,---., I SA7' SBT 2x20- 012 @1150 @>- 016@ II 014 ~014 7 08 SECTION B-8 M,;T CAT B-B SCloLE TYLE: FORMATKHO BAN VE: A1 STAlUS TfNH~G : Teclmical Oesign DATENGAY: 31/01/10 Thil <Rwi'ID mUll:notbe eithlrlOlrled,<q>ied«otl'lll'Wile NP'Odiacl ln wtdeah P11rtorul8dfor•nr prupmewllhoul:.. prlor'Mltsl parmlllllonot HRB. ......My_..,.,._.....,ng.....""'"""_'""',..,,o.y.... ~ ... - ......... ~f.... YGnb6n ... HRB. SCALE: 1120 TY LS:1120 NOTES: ~~~~~~~~~~~~~~~~~~~~~~ GHI CHL.f: 1. REINFORCEMENT YIELD STRENGTH: FY=420 MPA. 1. ClldNG DO CHAY CllA cx:fTTHE'.P :fy""-420 Mpa 2. CONCRETE COVER: C=50 MM. 2. Ld P Be! TONG e.<ov£c=50 mm 3. FOR PARAPET S"fARTER BARS REFER TO DWG. NO. 3.Ee! XEM THANH COT THe!P CHO' COA LAN CAN XJN XEM BAN VESO PIC-TEC-GRR-WVO-J00-18803-B TO PIC-TEC-GRR-WVO-J00-18808-B PROJECT CVAN: HANOI PILOTLIGHT METRO LINE Sedion Nhon•HantiRailway S1ation TIJY£NflOONG sATElOTHITHIfll~M TPHANQI ElatnN~n · Ga Hi NOi Tm.E~Ne,l,IVE : NHUE RIVER CROSSING VU'QT SONG NHUI;: DECK- SA8'-SB8' - REINF -1/2 BAN W.T c:Au. SAS'-SBB' - cOT n -11:.P. 112 DRAl'l1NGNO. BANVESO: PIC-TEC-GRR-WVO-J04-18552-B 3A
  • 108.
    Boe Type No.l~fNbo''.~Total llen fh ~hapelBend I Boe Type No 1,fNboar To~al hape Bend I Boe Type Bo Bo Totolll th hope Bend I Length fbor mark '"" of inmh No. g [ode T1pe D1mens1ons Shape "" mark '"" of in,.,h Bo Code Type D1rnens1ons Shape "" mark '"" o1 "'"h No. '"9 [ode Type 01mens1ons Shape ""size mernO rn•mb Sile rn•mb memb S11e memb mernb "" " "" " "" "" " " " " "" " '°' D12 1 178 178 3560 00 A=l5S5 = on 012 1 2 2 1040 99 2 A=19lB=15D IQ "" OB 1 B B 1160 99 2 A=86 B=ll1 (=14D D=l1S n004 D15 1 SB SB 3750 00 A=l749 = °" D1B 1 '° '° 3260 15 1 A=1>% B=1l12 C=iD1 ~ °" D16 1 12 12 1340 51 2 A=160 B=ZO~ [=11-l g 000 014 1 20 20 5755 2S 1 A=00JB=00J[=515D=lllE=4011->4SIJ~ m D16 1 20 20 MEAN 6270 15 1 A=lll4B=6J[=J1J ~ on D16 1 4 4 1100 21 2 A=49~ B=1~l [=483 y~ ""...·~ "°' D14 1 20 20 5755 2S 1 A=6ilB=60l[=515D=l11E=4111-·46D4~ OB D16 1 20 20 3710 00 A=l119 =MEAN ~ ""...·~ "°" D10 1 40 40 1510 1S 1 A=lll B=l45 [=ll49 ~ "" D12 1 40 40 3850 15 1 A=1011B=505[=17il ~ ""' DB 1 12 12 1130 99 2 A=99 B=ll1 C=l15 n rn D12 1 40 40 2050 99 1 A=SJO B=l49 [=H-l4 ~aM1"a1=il" "" D16 1 40 40 4465 99 1 A=l41B=llOl-•1150[=1%D=1iQ0-•1151E=19lf=1~ "'" D12 1 40 40 1350 15 0 A=09lB=l91[=61l ~MEAN al=1l>'a1=71'al=1aB•a4=11'aS=1l5' , c1=5Si ~ ""...·~ on DB 1 BO BO S30 99 1 A=l19 B=liO b rn D10 1 40 40 1350 13 1 A=1115 t== 01S D12 1 4 4 990 99 2 A=IJI B=lli IQ 040 DB 1 4 4 1130 99 2 A=9i B=l51 [=315 n 014 D12 1 2 2 9SO 99 2 A=l50 B=l50 IQ 041 DB 1 B B 1140 99 2 A=111 i=l51 [=J15 n ""'"'•-011'- '"""""•-OTP- """""-011'- c c Total Lengths and Weights Number of members 1 Type T Type R BENDING DIAMETERS Imm) ~ Lengths of standard hooks (mm) Total Weight Total Total Weight Total Diameters 6 B 10 12 14 16 1B 10 12 2S 2B Diameter Length per unit Weight Length per unit Weight Hooks Diameters I 6 B 10 12 14 16 1B 20 12 2S ,,, [f,g/m) [f,g] '"' (f,g/m] li,g) (Type 1) 36 48 60 72 B4 96 10B 120 132 1SO 224 ~ D 6 0 0.222 0.00 Frames 24 32 40 4B S6 64 10B 120 132 1SO 124~ !Type 2) B '9 0395 31.16 i'l(~~~re"r1esl 72 96 120 144 16B 192 216 240 264 300 ~ Hool,s 0 0 0 0 0 0 0 0 0 0 010 114 0617 70.56 (Type 1) D ~ R @_ Frames I 0 0 0 0 0 0 0 0 0 0 12 932 0.888 827 28 Frames 0 0 0 0 0 0 0 0 0 0 0 (Type 2) ~ (Type 2) 14 230 1210 278.54 11(~~~rearlesl 72 96 120 144 16B 192 216 240 264 300 ~ 616 1.580 973.56 R16 ~ BAR DIMENSIONS Frames I 0 0 0 0 0 0 0 0 0 0 1B 131 2000 262 40 [Tvne 2) ~ 20 0 2 470 000 - THE DIMENSIONS ARE GIVEN ON THE OUTSIDE FIBER OF THE REBAR (SEE BELOW)~ 12 0 2 980 000 - THE TOTAL LENGTHS ARE CALCULATED ON THE BASIS OF THE CENTERLINE ~1~~~re"r1e'I 36 ~ 0 3850 0 00 !ISO 3766:2004 - METHOD Bl 4B 60 72 B4 96 10B 120 132 1SO2S ~ 4 830 - THE BENDING ANGLES ARE GIVEN IN DEGREES <L D Frames I 02B 0 0 00 0 0 0 0 0 0 0 0 0~ !Type 2) 32 0 6.310 0.00 ~ '~ l'nchoragesl 36 4B 60 72 B4 96 10B 120 132 1SO36 0 7 990 0.00 ,, !Type 1) ~ R 40 0 9.660 0.00 Frames I 0 0 0 0 0 0 0 0 0 0~ ITvDe 2) ~ > Type T Type R Total Length - Bended: 1177 ;tr- ~1~~~re"r1e'I 65 6S 6S 6S 6S 6S 72 BO BB 100 Total Length - Straight. D Frames I 092S 0 0 0 0 0 0 0 0 0 0 Total Length lml 2102 !Type 2) • '--- l'nchoragesl 65 6S 6S 6S 6S 6S 72 BO BB 100Total Weight - Bended· 1421 R !Type 1) Total Weight - Straight 1024 Frames I 0 " 0 0 0 0 0 0 0 0 Total Weight (kg): 2444 ,, ITvDe 2) Mean Size Imm) GENERAL WEIGHT kg ';i__I 13 7 I I 2444 I ""'"""'"' """'"'"-DTP- ,_,,,•-OTP- ~ ' CLIENT: II PROJECT IMPLEMENTATION CONSULTANT FILENMIEITtN BAN'£: : sr.ALEIrtL(: : STATUSTlNHT~: PRO.ECTIDl/ #.! : HANOI PILOT LIGHT METRO LINE Sectkln NOOn - HlllOI Ralway station i I CHOEl.Wnr: Tl/ VAA THVC Hll;N DIJ AN PIC-TEC-ORR-WVQ.JIM-1BllllMl_JIA.DWa - Technical Design TU1N WONG sATBO rn1 rnlDlt::M TP HA NOi E>olil1 Nh&i- Ge Hill NOi ~ ~ SYSTRAS.A DESIGNED BYITlll£'r KE: : FORtMTIKHO eANv£ : DATEINGAY: Tm.EITtN BAN v£ : ~ HRB NHUE RIVER CROSSING '~ A.K A1 31/01110 lll1QT SONG NHUo7 ~§ "' "'"'11 2nd submission of lechnlcal des91 H 3.Maurls ·"""'"" !!s 1C ....10 UM•1"d H IG. Maurta ·"""'"" CIECKED BYsoAT: Thladr-ingrnJlllnolba-IDar-.d,coplacl<r-rapmcilcad DECK - SA8'-SB8' - REINF - BAR LIST - 1 / 2HANOI METROPOUTAN RAIL TRANSPORT PROJECT BOARD q 1B ,...,, UPDATE> ~· jG. Mauria "·"""'"" G. Mauris i1 whole ar in part <r used far any prl4)Ca wihoU; lh8 priorwrillBn BAN ~T cAU - SA8'.SB8' -COT TH~P- DANH MVC n<ANH - 1Ii ~ 1A 31/01/10 Fi181 l8al8 ~· 3.Mauria ·"""'"" BAN OiiAN DUONG sAT00 Tiii HA N()I permissiondHRB. ! • ""'"" ...... PROJECTDIRECTORIGIAMe0c IX/AN : CHIEFDESIGNERIa-io tt11eM Tii1£T KE: : Bin ve nQ' khOng auqc ph6p ar. d1o11g dllCI mQI hlrll tll)c, ml)I phln hay DRA'MNGNO.IBAN v£ SO : I2A~ B REVISION """ DESCRIPTION ClilEFOFDl!O IDAn bl), mil khOng o!uqc •II' .Dig~ ~IAln bin all. HRB. PIC-TEC-GRR-WVO-J04-18553-BS(IAOO "" NQI DUNG SO'A 001 THl~ICE "" Cl(JNIGlllETE Alain Bllchereau P.Amaud
  • 109.
    ~ ~ it i ~ii: 15 ES1 S1 ~ PARAPET!!!(i! i, STARTER BARS ::/:A THANH COT THEP NHO RA ';: SAS' SA7' SA6' 2x20-D12 @150 10 ~~T ~Ell U CH NH TliANH TTHEP ~@~,filu~l~~ 8 0 n-- 9 @) ~ti! ~~ a ~~ 911!. 9A ma Ca 9•Cl Cl ·-... N .... a .. N N ;!~ -.t~ n ® ~g ·-c;:a. .. SA9 S3 SB9 KEY PLAN K~ HO~CH CHfNH SCALE: 1/200 TYLl;:1/200 ~@ C?@ ~~-fo04~2~x3~1-~D1=6----1~ ~~~~~~~~~~~~~~~~~~~~~~~~~~~~~~~~'("/ @1150 ~ ~I I!! ~ uw .!: F % !I $i !;l 8 uB ®0 "'"'C¥@_,_ _ N ~ N x ~ I -1 l;:::- ~ L..--.-! - t ~ I--._ ~ >Jr- ~ II ,j @ 2x2- 016 c:: -- ~-- ~ ~ ~ "" --- ~ DETAILX CHI Tl~TX SCALE: 1/10 ITLI;: 1/10 I f.-t I -Ll 9 SECTION A-A MAT CATA-A SCALE: 1/20 TY Li;:1/20 o----+---+---------------_.____......__ __.....__ ___. Q.IENT: o----+---+---------------_.____......__ __.....__ ___. CHOflAuru: 3" 21/11Y11 Upda111d 2A 3004'11 2nd aubml11lon at'lechnlcal dMlgn HRBA.K A . K 1C ~8110 Upda111d A . K 18 2MIBl10 UPDATED 1A 31m1110 Fl'"111a» A . K HANOI METROPOLITAN RAIL TRANSPORT PROJECT BOARD !----+---+----------------,.-.K---4----+-----l BAN DI/AN llWNG IA.TllOTHI llANQI REVISION DATE SLrAOOI Nal.Y DESCRIPTION NQI DUNGWAfJOI IHIHl!BI' HIM! CllllClllBI' IOI.! •PROJECT IMPLEMENTATION CONSULTANT 11 VAN THl,IC HleN DI,/ AN SYSTRAS.A PROJECTDIRECTORGIAMaocDI/AN: Alain B~cheraau n 9 a ma Ca ·-<;:A .. FILE NAA1ElTtNBAN/£: DESIGNED BY TH1£TK£ : A. K CHECKED BYSlll.T: G. Maur1s CHIEF ~IGNERCll) NHleMlll1£rK£: P. Amaud SA9 SA8 SBB SA7 587SB9 (§ <@) @)032 033 Na 51 5] Ci~ .....t: ,1 I I 1,--,---,---,---,- ,-· · 'J 2x2 0- D12 @l-'r ~ @1150 DETAILX ) 016®§ CHI TIETX BLISTER TYPE 1 DD 1R0 LOAI 1 L~ ,______ .______ I V REINFORCEMENT SEE DWG.,_ ~ 1--- L~ L---- 1--- '---- '- I-- ~I ~ - I iSffi_m-~~04--18662-B 3-B - - ~ ,.,,...- ..__ '-~ PIC-TEC-GRR-WVO-J04--1866 I-= = k '--- - -~~ ,.L-;;....-- L-- ' - 014 ~ L_J0 14 L _ J ~i 08 009 n SECTION B-B MAT CAT B-B (~ SCALE TYLE: FORMATKHO BAN VE: A1 STAlUS TfNH~G : Teclmical Oesign DAlENGAY: 31/01/10 Thil <Rwi'ID mUll:notbe eithlrlOlrled,<q>ied«otl'lll'Wile NP'Odiacl ln wtdeah P11rt orul8dfor•nr prupmewllhoul:.. prlor'Mltsl parmlllllonot HRB. ......My_..,.,._......."11 ..... ..,.. .... _m(LlpMnt.y .... ~ ... - .........~t~ ,,.,, ...... HRB. SCALE: 1/20 T'l' Ll;:1/20 NOTES: --------------------~ GHI CHL.f: 1. REINFORCEMENT YIELD STRENGTH: FY=420 MPA. 1. ClldNG fl0 CHAY CllA cx:fTTHE'.P :fy--420 Mpa 2. CONCRETE COVER: C=50 MM. 2. Ld P BE TONG e.<ov£c=50 mm 3. FOR PARAPET srARTER BARS REFER TO DWG. NO. 3. flE. XEM THANH COT THe!P CHO' COA LAN CAN XJN XEM BAN 111:SO PIC-TEC-GRR-WVO-J00-18803-B TO PIC-TEC-GRR-WVO-J00-18808-B PROJECT CVAN: HANOI PILOTLIGHT METRO LINE Sedion Nhon•HantiRailway S1atial TllY£NflOONG sAT00llilTHIfll~M TPHANQI Batn N~n · Ga Hi NOi Tm.ETtNBANVE: NHUE RIVER CROSSING VU'QT SONG NHUI;: DECK- SA8-SB8 - REINF -1/2 BAN ~T cAU - SA8-SB8 ·COT THi:P - 1 / 2 DRAl'l1NGNO. BANV£SO: PIC-TEC-GRR-WVO-J04-18556-B 3A
  • 110.
    Boe Type Nol~rNo'or htalll fh hope Bend I Boe Type No ~-fNboor Total Length hope Bend I Boe Type No 1~.rNboar Total Length Shope Bend I mark '"" of inmh No. eng [ode Type D1mens1ons Shope "" mark '"" of ""'h No [ode Type D1mens1ons Shope "" mark '"" of in,.<h No [ode T1pe Dimensions Shope ""size mernb rn•mb 11ze memb memb size memb memb "" " "" " "" "" " " " " " " "' ft°" D12 1 178 178 3560 00 A=l555 = on 012 1 2 2 920 99 2 A=151B=l•l[=lllD=l50E=ll9f=14lG=185D.. 000 DB 1 B B 1160 99 2 A=86 B=l51 [=140 D=l15 <>1=11"<>MIB"<Xl=91"<>4=10.<X5=12"<>0= ,, 004 D15 1 62 62 3750 00 A=l749 = °" 018 1 40 40 3260 15 1 A=Z4% B=1l11 C=801 ~ 001 D16 1 12 12 1340 51 2 A=110 8=100 (=14l g 006 D14 1 20 20 5755 25 1 A=00l8=00ll=515D=515E=4011->458J~ °" 016 1 20 20 6270 15 1 A=JIJ4 B=Ol l=J1J4 ~ on D16 1 4 4 1100 21 2 A=410 B=ZOJ l=48J yI~.,, -·~ 000 D14 1 20 20 5755 25 1 A=00l8=60lC=515D=mE=4>11-·4604~ OB 016 1 20 20 3710 00 A=l119 =MEAN 1-.,, -·~ 000 010 1 40 40 1510 15 1 A=11l 8=145 [=IJ49 ~ 015 012 1 40 40 3850 15 1 A=1011 8=565 (=1181 ~ 000 D8 1 12 12 113D 99 2 A=99 8=ll1 C=311 n. m 012 1 40 40 205D 99 1 A=lli 8=149 [=l>JI rida1=i1" a1=9~" 011 D16 1 '° '° 4465 99 2 A=141B=llQl-•1110[=190D=1800-•1851E=1HF=1~ 0'8 012 1 '° '° 1350 15 0 A=093 8=l97 [=Oll ~MEAN «1=1ll'«1=12'al=1a8•ot4=12'a5=1ll• c1=55~ 1-.,, -·~ ' on DB 1 80 80 530 99 1 A=119 B=liO b "" 010 1 40 40 1350 13 1 A=1211 t:::::=i "" D12 1 6 6 990 99 2 A=171 8=151 IQ 099 08 1 4 4 1130 99 2 A=9B B=lSI [=315 n. 010 D12 1 2 2 950 99 2 A=150 8=150 IQ 0'1 08 1 8 8 1140 99 2 A=10J 8=351 [=l15 n. '"''"" -011'- '"""""•-OTP- "~<l>ll•-DTP- c c Tot-al Lengt-hs and Weights Number of members 1 Type T Type R BENDING DIAMETERS Imm) ~ Lengths of st-andard hooks Imm) Total Weight Total Total Weight Total Diameters 6 8 10 12 1' 16 18 20 22 25 28 Diam el-er Length per unit Weight Length per unit Weight Hooks Diameters I 6 8 10 12 14 16 18 20 22 25 ,,, [kg/ml [kg] '"' lkg/m] lkg) (Type 1] 36 48 60 12 84 96 108 120 132 150 224 ~ D 6 0 o222 000 Frames 24 32 40 48 56 64 108 120 132 150 224~ !Type 2) 8 19 0.395 3116 ~1~~~reaf1esl 72 96 120 144 168 192 216 240 264 300~ Hooks 10 114 D.617 70 SB (Type 1) 0 0 0 0 0 0 0 0 0 0 0 D ~ 933 0888 R Frames @_ Frames I 0 0 0 0 0 0 0 0 0 0 12 828.82 0 0 0 0 0 0 0 0 0 0 0 IType 21 ~ ITvoe 2) ~1~~~reaf1esl l214 230 1.Z1D 278 54 96 120 144 168 192 216 240 264 300~ 16 631 1SBO 997.26 R ~ BAR DIMENSIONS Frames I 0 0 0 0 0 0 0 0 0 0 18 131 2.000 262.40 IType 21 ~ 20 0 2.4 70 0.00 - THE DIMENSIONS ARE GIVEN ON THE OUTSIDE FIBER OF THE REBAR ISEE BELOW) ~ 22 0 2.980 0.00 - THE TOTAL LENGTHS ARE CALCULATED ON THE BASIS OF THE CENTERLINE f'l(~~~reaf1esl 36 ~ !ISO 3766.2004 - METHOD Bl 48 60 12 84 96 108 120 132 15025 0 3.850 0.00 ~ - THE BENDING ANGLES ARE GIVEN IN DEGREES ~ D 28 0 4.83D 0.00 Frames I 0 0 0 0 0 0 0 0 0 0~ IType 21 32 0 6.310 0.00 A E f'l(~~~reafJesl 36 ~ n____,t-"-' 48 60 12 84 96 108 120 132 15036 0 7.990 0.00 ~ R 40 0 9 860 0 00 Frames I 0 0 0 0 0 0 0 0 0 0~ ~} ~ .. ITv~e 2) Type T Type R Total Length - Bended 1179 r f'l(~~~reaf1esl 65 65 65 65 65 65 12 80 88 100 D Total Length - Straight 940 0 Frames I 0 0 0 0 0 0 0 0 0 0 Total Length Im): 2119 IType 21 Total Weight- Bended: • "-- f'l(~~~reafJesl 65 65 65 65 65 65 12 80 88 100 1422 R Total Weight- Straight: 1048 Frames I 0 0 0 0 0 0 0 0 0 0 Total Weight lkg). 2469 ,, ITv~e 2) Mean Size Imm) GENERAL WEIGHT kg YLI m I I 2469 I ""'""''"' "~''°•-DTP- '""'°" -DTP- ~ ' CLIENT: II PROJECT IMPLEMENTATION CONSULTANT FILENMIEITtN BAN'£: : sr.ALEIrtL(: : STATUSTlNHT~: PRO.ECTIDl/ #.! : HANOI PILOT LIGHT METRO LINE Sectkln NOOn - HlllOI Ralway station i I CHOEl.Wnr: Tl/ VAA THVC Hll;N DIJ AN PIC-TEC-ORR-WVQ.JIM-1Blll!l'-8_2".DWa - Technical Design TU1N WONG sATBO rn1 rnlDlt::M TP HA NOi E>olil1 Nh&i- Ge Hill NOi ~ ~ SYSTRAS.A DESIGNED BYITlll£'rKE: : FORtMTIKHO eANv£ : DATEINGAY: Tm.EITtN BAN v£ : ~ HRB NHUE RIVER CROSSING '~ A.K A1 31/01110 lll1QT SONG NHUo7 ~§ "' "'"'11 2nd submission of lechnlcaldes91 H 3.Maurls ·"""'"" !!s 1C ....10 UM•1"d H IG. Maurta ·"""'"" CIECKED BYsoAT: Thlad-ngrnJlllnolba-IDal-.d,coplaclor-rapmcilcad DECK - SA8-SB8 - REINF - BAR LIST -1 I 2HANOI METROPOUTAN RAIL TRANSPORT PROJECT BOARD q 1B ,...,, UPDATE> ~· jG. Mauria "·"""'"" G. Mauris i1 whole ar in part or used for any prl4)Ca wihoU; lh8 priorwrillBn BAN ~T cAU - SA8-SB8 -COT TH~P- DANH Ml,IC TI-tANH -1 / ~ 1A 31/01/10 Fi181 l8al8 ~· 3.Mauria ·"""'"" BAN OiiAN DUONG sAT00 1111 HA N()I permissiondHRB. ! • ""'"" ...... PROJECTDIRECTORIGIAMe0c IX/AN : CHIEFDESIGNERIa-io tt11eM Tii1£T KE: : Bin ve nQ' khOng auqc ph6p ar. d1o11g dllCI mQI hlrll tll)c, ml)I phln hay DRA'MNGNO.IBAN v£ SO : I2A~ B REVISION OA" DESCRIPTION ClilEFOFDl!O IDAn bl), mil khOng o!uqc •II' .Dig~ ~IAln bin all. HRB. PIC-TEC-GRR-WVO-J04-18557-B "''"' "" NQI DUNG SO'A 001 THl~ICE "" Cl(JNIGlllETE Alain Bllchereau P.Amaud
  • 111.
    ~ ~ it i ~ii: 15 ES1 S1 SAB'SA7' SAS' ~ENT EJ1eu CHINH THANH COT THeP =--- b9~~w I!! ~ uw .!: F % !I $i !;l 8 uB PARAPET !!!~ STARTER BARS ~A THANH COT THeP NHO RA ';: 2x20-D12 @150 10 --§ 2x27-D16 @1150 @O ~~ -r-- 'i'@,_,_ ~~ ~ x .::-! I ( ->- t I ~ - ~ ~ ~ i.: @ 2x2- D16 c:: _.____ .____,_ i....___ " ' ' ' 11 lLJ i-- - I l,j - ~ J...._,_ ._______ . DETAILX CHITl~TX SCALE: 1/10 TYL!;: 1/10 ' 8 0 I ' I " I -Ll SECTION A-A M~TCATA-A SCALE: 1/20 TYLl;:1120 o--~-+-~~-+-~~~~~~~~~~~~~~-+-~~~...._~~...._~~-< Q.IENT: o--~-+-~~-+-~~~~~~~~~~~~~~-+-~~~...._~~...._~~-< CHOflAuru: 3" 21/11Y11 Upda111d 2A 3004'11 2nd aubml11lon at'lechnlcal dMlgn A.K HRBA . K 1C ~8110 A . K ..co 10,..o ..-"'"& Upda111d 18 2MIBl10 UPDATED A . K HANOI METROPOLITAN RAIL TRANSPORT PROJECT BOARD !----+---+----------------,.-.K------1----l BAN DI/AN llWNG sA.rllOTHI llANQI1A 31m1110 REVISION DATE SLrAOOI Nal.Y Flr"111a» DESCRIPTION NQI DUNGWAfJOI IHIHl!BI' HIM! CllllClllBI' IOI.! • SA9 S3 SB9 KEY PLAN K~ HO~CH CHfNH SCALE: 1/200 TYLS:1/200 PROJECT IMPLEMENTATION CONSULTANT 11 VAN THl,IC HleN DI,/ AN SYSTRAS.A PROJECTDIRECTORGIAMaocDI/AN: Alain B~cheraau ~$1 52 SA9' SB9' SAB' SB8' 9 ~~ @ @) 9ii..t: REINFORCEMENT SEE DWG. COT THeP XEM BANve PIC-TEC-GRR-WVo-.104-18662-B PIC-TEC-GRR-WVo-.104-18663-B 016@§ SECTION B-B M~T CAT B-B FILE NAA1ElTtN e,1,1/£: DESIGNED BY TH1"1K£: A. K CHECKED BYSlll.T: G. Maur1s CHIEF~IGNERCll) NHleMTH1£r Ke: P. Amaud SCALE TYLE: FORMATKHO BAN VE: A1 STAlUS TfNH~G : Teclmical Oesign DAlENGAY: 31/01/10 Thil <Rwi'ID mUll:notbe eithlrlOlrled,<q>ied«otl'lll'Wile NP'Odiacl ln wtdeah P11rtorul8dfor•nr prupmewllhoul:.. prlor'Mltsl parmlllllonot HRB. ......My_..,.,._......."11 ..... ""'"""-"""iHn'-Y ....~ ...- .........~t~'"""'"""'"""· SCALE: 1/20 TYLS:1120 NOTES: ~~~~~~~~~~~~~~~~~~~~~~ GHI CHL.f: 1. REINFORCEMENT YIELD STRENGTH: FY=420 MPA. 1. ClldNG El0 CHAY CllA cx:fTTHE'.P :fy--420 Mpa 2. CONCRETE COVER: C=50 MM. 2. Ld P eeTONG e.<oV£c=50 mm 3. FOR PARAPET S"fARTER BARS REFER TO DWG. NO. 3. EJe XEM THANH COT THe!P CHO' GOA LAN CAN XJN XEM BAN ve so PIC-TEC-GRR-WVO-J00-18803-B TO PIC-TEC-GRR-WVo-.100-18808-B PROJECT CVAN: HANOI PILOTLIGHT METRO LINE Sedion Nhon•HantiRailway S1ation TIM:NflOONG sATEJ0THITHIfll~M 1l'HA NQI ElatnN~n · Ga Hi NOi Tm.ETtNB,l,IVE: NHUE RIVER CROSSING VU'QT SONG NHUI;: DECK- SA9'-SB9' - REINF -1/2 BAN W,T cAU. SA9'-SB9' - cOT Tl·H:.P. 1 / 2 DRAl'l1NGNO. BANV£SO: PIC-TEC-GRR-WVO-J04-18560-B 3A
  • 112.
    B.c T1pe No.~/b~r Total Bend I B.c Type l:"o Tol•l Bend I B.c Type No:,l~fNb~'.~Tofol llength~hopel Bend I hope No. fbar hope mark ;od of ""'h No Length Code Type Dimensions Shope "" marO ;od or'""'o No Leng~h Code Type Dimensions Shope "" morh ;od of '"'"h No. Code Type Dimensions Shope """" memb m•mb Sile memb memb size memb. memb "" "" "" " "" "" "" " "" "" "" " 002 °" 1 11B 118 3560 00 A=lSIS = rn D18 1 40 40 3280 15 1 A=1496 B=1l11 [=817 ~ 011 D16 1 12 12 1340 51 2 A=10~ B=1&0 [=14l g 004 D16 1 54 54 3750 00 A=ll9 = m D16 1 2D 2D 6270 15 1 A=J1J4 B=Ol C=lll4 ~ 012 D16 1 4 4 1100 21 2 A=90 B=10J [=Ill IbdI 004 D14 1 20 20 5775 25 1 A=00lB=60l[=S11D=SJSE=4611->4010~ m D16 1 20 20 3710 00 A=l109 =MEAN ;::; "" A=00lB=00l[=515D=575E=4@4-·4014~ ~'°' D14 1 20 20 !l'l5 25 1 rn D12 1 40 40 3650 15 1 A=11Jl B=565 [=1181 ;; - y000 D10 1 40 40 ~~ 15 1 A=l7l B=141 C=1l49 ~ m D12 1 40 40 2050 99 1 A=SJO B=149 C=14l4 aMl"a1=10" 000 DB 1 12 12 1130 99 2 A=i9 B=JSI (=J15 n. rn D12 1 40 40 1350 15 0 A=09J B=l97 C=OJJ cl=550 ~ 001 D16 1 40 40 4405 99 2 A=l47B=119a-.rn05(=196D=l791-·IB06E=19lf=1~~ m D10 1 40 40 1350 13 1 A=l115 E::::= ;I~ a1=1JS"a1=11"<Xl=108" al=11"«5=1l5" , - b n.OB DB 1 80 80 ~ 99 1 A=l19 8=l0D 040 D8 1 4 4 1130 99 2 A=98 B=l51 C=l15 015 D12 1 4 4 990 99 2 A=l70 8=150 IJd 041 D8 1 8 8 1140 99 2 A=IOl B=JSI C=l15 n. 014 D12 1 2 2 1040 99 2 A=lil B=ISO IJd "' DB 1 8 8 1160 99 2 A=86 B=ll1 C=14D D=l15 n '"""•-m- """""-011'- '""'"_"'_ Total Lengths and Weights Number of members 1 Type T Type R BENDING DIAMETERS Imm) Lengths of standard hooks Imm)~ Total Weight Total Total Weight Tot<il Diameters 6 8 10 12 14 16 18 20 22 25 2B Diameter Length per unit Weight Length per unit Weight Hooks IDiameters 6 8 10 12 14 16 18 20 22 25 '"' [kg/ml [kg] '"' (kg/ml lkg) (Type 1) 36 48 60 12 84 96 108 120 132 150 224 ~ D 6 0 0.222 0.00 Frames 24 32 40 48 56 64 108 120 132 150 224~ IType 21 8 19 0.395 31.16 Anchorages 12 96 120 144 168 192 216 240 264 300~ Hooks 0 0 0 0 0 0 0 0 0 0 0 !Type 1) 10 114 0 617 70.56 (Type 1) D ~ R @_ Frames 0 0 0 0 0 0 0 0 0 0 12 930 0.888 825.59 Frames 0 0 0 0 0 0 0 0 0 0 0 !Type 2) ~ (Type 2) 14 231 1210 279 51 Anchorages 12 96 120 144 168 192 216 240 264 300 ~ 599 1.580 946 07 R (Type 1] 16 Frames~ BAR DIMENSIONS 0 0 0 0 0 0 0 0 0 0 1B 131 2.000 262.40 ITvPe 21 ~ 20 0 2.470 ODO - THE DIMENSIONS ARE GIVEN ON THE OUTSIDE FIBER OF THE REBAR [SEE BELOW! ~ 22 0 2 980 000 - THE TOTAL LENGTHS ARE CALCULATED ON THE BASIS OF THE CENTERLINE nchorages~ !ISO 3766:2004 - METHOD Bl 36 48 60 12 84 96 108 120 132 15025 0 3 650 0.00 !Type 1) ~ - THE BENDING ANGLES ARE GIVEN IN DEGREES ~ D Frames28 0 4 830 0.00 0 0 0 0 0 0 0 0 0 0~ !Type 2) 32 0 6.310 0.00 rl____~ nchorages~ 36 4B 60 12 B4 96 108 120 132 15036 0 7.990 0.00 (Type 1) ~ R Frames40 0 9.860 0.00 0 0 0 0 0 0 0 0 0 0~ ITv~e 21 ~yType T Type R nchorages Total Length - Bended: 1174 )f- (Type 1) 65 65 65 65 65 65 12 80 88 100 Total Length - Straight D Frames910 0 0 0 0 0 0 0 0 0 0 0 !Type 2) Total Length [ml 2084 '--- nchorages Total Weight - Bended: 1416 • (Type 1] 85 65 65 65 65 65 12 80 88 100 R FramesTotal Weight - Str<i1ght: 1000 0 0 0 0 0 0 0 0 0 0 Total Weight [kg]: 2415 ,, ITvne 2) Mean Size Imm) GENERAL WEIGHT kg )!I Bl I I 2415 I '"'""" 011' "~CA!l•-DTP- '"""" -m- ~ ' CLIENT: II PROJECT IMPLEMENTATION CONSULTANT FILENMIEITtN BAN'£: : sr.ALEIrtL(: : STATUSTlNHT~: PRO.ECTIDl/ #.! : HANOI PILOT LIGHT METRO LINE Sectkln NOOn - HlllOI Ralway station • I CHOEl.Wnr: Tl1 VAA THVC Hll;N DIJ AN PIC-TEC-ORR-WVQ.JIM-1M91-8_2oU!Wa - Technical Design TU1N WONG sATBO rn1 rnlDlt::M TP HA NOi E>olil1 Nh&i- Ge Hill NOi ~ ~ ~ SYSTRAS.A DESIGNED BYITlll£'r KE: : FORtMTIKHO eANv£ : DATEINGAY: Tm.EIrt:N BAN v£ : ~ HRB NHUE RIVER CROSSING '~ A.K A1 31/01110 lll1QT SONG NHUo7 ~§ "' "'"'11 2nd submission of lechnlcaldes91 H 3.Maurls ·"'"°'"" !!s 1C ....10 UM•'"' H IG. Maurta ·"'"°'"" CIECKED BYsoAT: Thladr-ingrnJlllnolba-IDar-.d,coplacl<r-rapmcilcad DECK - SA9'-SB9' - REINF - BAR LIST - 1 / 2HANOI METROPOUTAN RAIL TRANSPORT PROJECT BOARD q 1B ,...,, UPDATE> ~· jG. Mauria "·""'""" G. Mauris i1 whole ar in part <r used far any prl4)Ca wihoU; lh8 priorwrillBn BAN ~T cAU - SA9'.SB9' -COT TH~P- DANH MVC n<ANH - 1Ii ~ 1A 31/01/10 Fi181 l8al8 ~· 3.Mauria ·"'"°'"" BAN OiiAN DUONG sAT00 1111 HA N()I permissiondHRB. ! • ""'"" -· PROJECTDIRECTORIGIAMe0c IX/AN : CHIEFDESIGNERIa-iott11eM Tii1£T KE: : Bin ve nQ'khOng auqc ph6p ar. dlol'IQ dllCI mQI hlrll tll)c, ml)! phln hay DRA'MNGNO.IBAN v£ SO : I2A~ B REVISION OAJE DESCRIPTION ClilEFOFDl!O IDAn bl), mil khOng o!uqc •II' .Dig~ ~IAln bin all. HRB. PIC-TEC-GRR-WVO-J04-18561-B "''"' "" NQI DUNG SO'A 001 THl~ICE "" OONIGlllETE Alain Bllchereau P.Amaud
  • 113.
    ~ ~ it i ~ii: 15 ES1 S1 SAB'SA7' SAS' ~ RE~AR ~DJUSTMENT DI U CH NH THANH COT THE.P =-- ~ F~R PT CONFLICT D IVO'I XUNG EJOT PT t'@ I!! ~ uw .!: ® ~ 10 PARAPET Ct CD&n CiLAN CAN --STARTER BARS 9&Ct THANH COT THeP NHO RA ';: -~ t [ (§) 2x2- 016 c:: 2x20-D12 Qll150 --- Q 2x31- 016 Z')' @1150 ®0 ~~ '?@,_,_ N'° ~ x ~ .it== ~ml ~ ....... !r- ~ <i <i _..... ~ ---·- - - - ~ --- - DETAILX CHI Tli;_T X SCALE: 1/10 TYLI;: 1/10 €fCt .....,, t:?&Ct .......... 9--- I - -J_ 0 n 9 @ Ct :e~ ....,, ~- !g 'i'i. "" ,_.... ..... ""... '----.J L.___J 8 @ = =~~ _,"'";'@, ~@, = =N N $SECTION A-A MAT CATA-A SCALE: 1/20 TYLl1.:1120 o----+----+----------------+----+---+-----< Q.IENT: CHOflAu 11: >---+----+----------------+----+---+-----< 3" 21/11Y11 2A 3004'11 HRBUpda111d A.K 2nd aubml11lon at'lechnlcal dMlgn A . K n ® !8,_ <;:IL .... DD 00 ~ C> I..,...... ...,,.,. '""..,.,, ..-...... • SA9 S3 SB9 KEY PLAN Ki;_ HO~.CH CHiNH SCALE : 1/200 TYLl;:1/200 016 PROJECT IMPLEMENTATION CONSULTANT 11 VAN THl,IC HleN DI,/ AN SYSTRAS.A F % 1C ~8110 !I $i 18 2MIBl10 !;l 8 Upda111d A. K 1--=--i;;;=-"--+-"u"'PD,t;=JED;...__ _ _ _ _ _ _ _ _ _ _ _"-,."".K"----==-.;..;..;;;=--1 HANOI METROPOLITAN RAIL TRANSPORT PROJECT BOARD u 1A 31m1110 REVISION DATE B SLrAOOI Nal.Y F1m -. " ·K BAN 011AN allONG sA.raO THI HA NQI DESCRIPTION NQI DUNGWAfJOI IHIHl!BI' HIM! CllllClllBI' IOI.! PROJECTDIRECTORGIAMaocDI/AN: Alain B~cheraau n 9 ..,g.,,.,, ·-c;-:& ... FILE NAA1ElTtN e,1,1/£: DESIGNED BYTH1£TK£: A. K CHECKED BYSlll.T: G. Maur1s CHIEF ~IGNERCll) NHleMTH1£rK£: P. Amaud S3 SA9 SB9 SA8 SB8 ' S2 ES2 S3 0 § @) ~~ 9i,.. ~1 ~Jt: , ) ( ETAILX)~D CH1ntrx DD017 016 015 ~1 ~ D ~r r<r 2x20- 012 @l1SO @- 016® -014 8t=S-- ... 014 8 08 009 SECTION 8-B MAT CAT B-B SCALE TYI.Ii: FORMATKHO BAN VE: A1 STAlUS TfNH~G : Teclmical Design DAlENGAY: 31/01/10 Thil <Rwi'ID mUll:notbe eithlrlOlrled,<q>ied«otl'lll'Wile NP'Odiacl ln wtdeah P11rtorul8dfor•nr prupmewllhoul:.. prlor'Mltsl parmlllllonot HRB. ......My_..,.,._......."11 ..... ..,.. .... _m(llpMno.y ....~ ...- .........~t~'"""'""'""""· SCALE: 1/20 Ti'Ll1.:1120 NOTES: ---------------------~ GHI CHL.f: 1. REINFORCEMENT YIELD STRENGTH: FY=420 MPA. 1. ClldNG El0 CHAY CllA cx:fTTHE'.P :fy--420 Mpa 2. CONCRETE COVER: C=50 MM. 2. Ld P eeTONG e.<ov£c=50 mm 3. FOR PARAPET S"fARTER BARS REFER TO DWG. NO. 3. EJE. XEM THANH COT THe!P CHO' GOA LAN CAN XJN XEM BAN VE SO PIC-TEC-GRR-WVO-J00-18803-B TO PIC-TEC-GRR-WVO-J00-18808-B PROJECT CVAN: HANOI PILOTLIGHT METRO LINE Sedian Nhon•HantiRailway S1atial TIJY£N flOONG sATElOTHITHIfll~M TPHA NQI Batn N~n · Ga Hi NOi Tm.ETtNllMIVE: NHUE RIVER CROSSING VU'QT SONG NHUI;: DECK- SA9-SB9 - REINF - 2 / 2 BAN ~T cAU - SA9-SB9 ·COT THi:P - 2 / 2 DRAl'l1NGNO. BANVESO: PIC-TEC-GRR-WVO-J04-18564-B 3A
  • 114.
    Boe T1pe f:'oTotal L thlShape Bend I Boe Type l:"o Totol hope Bend I Boe T1pe No ~"fNbo''.~To~al ILen thlshapel Bend I ~o fbor No fbar Lengfhmark '"" of ""'h No '"9 [ode Type D1menmns Shope "" mark '"" of mmo No Code Type D1mens1ons Shape "" mar• '"' of ""'h No. g [ode Type Dimensions Shape ""s11e memb memo me memb memb Sile memb memb " " " " '' " '' " '' '' " "" n001 D12 1 11B 118 3560 OD AdSIS = on D12 1 2 2 92D 99 2 A=151B=14l(=1SlD=1SDE=11lf=l4lU=l8SD., m DB 1 B B 1160 99 2 A=80 BdSI (=14a D=l2S <Xl=11·<X1=10i"al=90.a4=9i"a5=71·a6= AE 004 D16 1 62 62 3750 00 A=l19 = ,,, D1B 1 40 40 3280 15 1 A=1496 B=1l71 (=801 ~ rn D16 1 12 12 1340 51 2 A=16D B=1&~ [=14l g 008 D14 1 20 20 5775 25 1 A=00lB=ODJ[=515D=SJSE=4611->01D~ m D18 1 20 20 MEAN 6270 15 1 A=l134 8=63 C=JIJ4 ~ 011 D18 1 4 4 1100 21 2 A=49~ B=1~l [=4BJ IbdI·~ ·~ -·~· '°' D14 1 20 20 5775 25 1 A=00l8=6Dl[=515D=575E=4604-,4014~ m D16 1 20 20 3710 00 A=l709 =MEAN ·~ ·~ -·~· '°' D10 1 40 40 1520 15 1 A=lll B=l45 C=1l51 ~ rn D12 1 40 40 3650 15 1 A=1012 B=565 [=lrnl ~ 009 D8 1 12 12 1130 99 2 A=i9 B=JSI l=l15 IF m D12 1 40 40 2050 99 1 A=SJQ B=14i C=14l4 ~aMl"a1=10" "" D16 1 40 40 4405 99 2 A=llJB=mO->llO>C=190D=IJ91->llO&E=29lf=1~ 0'6 D12 1 40 40 1350 15 0 A=69l B=l97 C=61l ~MEAN ~1=1JS' ~2=71"al=108' ~•=11"aS=1lS' , cl=SIO ·~ ·~ -·~· °" D8 1 80 80 530 99 1 A=l19 B=lO~ 6 m D10 1 40 40 1350 13 1 A=1115 r== 015 D12 1 8 8 990 99 2 A=l10 B=ISO Ikd 040 D8 1 4 4 1130 99 2 A=98 B=l51 C=l15 IF 018 D12 1 2 1 950 99 1 A=l>O B=l50 Ikd 041 D8 1 8 8 1140 99 2 A=107 B=l51 C=l15 IF """'•-OT>- "'""•-011'- "'"""-01>- c c Total Lengths and Weights Number of members 1 Type T Type R BENDING DIAMETERS (mm) ~ Lengths of standard hooks Imm) Total Weight- Total Total Weight- Total Diameters 6 8 10 12 14 16 18 20 22 25 28 Diameter Length per unit Weight Length per unit Weight Hooks IDiameters 8 8 10 12 14 18 18 20 22 25 ,,, 11-g/ml 11-g) ,,, [kg/ml (kgl [Type 11 36 48 8D 12 84 96 108 120 132 150 224 ~ D 6 0 0.222 0.00 Frames 24 32 40 48 56 64 108 120 132 150 224~ !Type 2] 8 10 0 395 31.16 l"nchorages 12 96 120 144 188 192 218 240 284 300 ~ Hooks 0 0 0 0 0 0 0 0 0 0 0 [Type 1) 10 115 0617 70.83 [Type 1) D ~ R @_ Frames 0 0 0 0 0 0 0 0 0 0 12 933 0.888 828 82 Fr;ime5 0 0 0 0 0 0 0 0 0 0 0 (Type 21 ~ [Type 2) 14 231 1210 279.51 ~nchorages 12 96 120 144 188 192 218 240 284 300 ~ 629 1.5BO 993.47 R (Type 1) 16 Frames~ BAR DIMENSIONS 0 0 0 0 0 0 0 0 0 0 18 131 2 000 262 40 (Tv~e 21 ~ 20 0 2 470 000 - THE DIMENSIONS ARE GIVEN ON THE OUTSIDE FIBER OF THE REBAR ISEE BELOW]~ 22 0 2 980 000 - THE TOTAL LENGTHS ARE CALCULATED ON THE BASIS OF THE CENTERLINE flnchorages~ (ISO 3766:2004 - METHOD Bl 36 48 80 12 84 96 108 120 132 15025 0 3 850 000 [Type 1) ~ 4 830 - THE BENDING ANGLES ARE GIVEN IN DEGREES (L D Frames28 0 000 0 0 0 0 0 0 0 0 0 0~ !Type 21 32 0 6.310 0.00 ~ '~ fnchorages 36 48 80 12 84 96 108 120 132 15038 0 7 990 0.00 ,, !Type 1) ~ R Frames40 0 9.860 0.00 0 0 0 0 0 0 0 0 0 0~ ITvoe 21 ~ .Type T Type R flnchorages Total Length - Bended: 1178 ;tf- [Type 1) 65 65 65 65 65 65 12 80 88 100 Total Lengt-h - Straight-. D Frames940 a 0 0 0 0 0 0 0 0 0 0 Total Length Im] 2118 !Type 21 • '--- fnchorages 65 65 65 65 65 65 12 80 88 100Total Weight - Bended· 1419 !Type 1) R FramesTotal Weight - Straight 1048 0 0 0 0 0 0 0 0 0 0 Total Weight lkg): 2466 ,, ITvoe 21 Mean Size [mml GENERAL WEIGHT kg V(I 131 I I 2466 I "'''"""'1' "''"[)o-011'- """""-011'- ~ ' CLIENT: II PROJECT IMPLEMENTATION CONSULTANT FILENMIEITtN BAN'£: : sr.ALEIrtL(: : STATUSTlNHT~: PRO.ECTIDl/#.! : HANOI PILOT LIGHT METRO LINE Sectkln NOOn - HlllOI Ralway station ~ I CHOEl.Wnr: Tl1 VAA THVC Hll;N DIJ AN PIC-TEC-ORR-WVQ.JIM-1MlllMl_JIA.DWa - Technical Design TU1N WONG sATBO rn1 rnlDlt::M TP HA NOi E>olil1 Nh&i- Ge Hill NOi ~ ~ ~ SYSTRAS.A DESIGNED BYITlll£'rKE: : FORtMTIKHO eANv£ : DATEINGAY: Tm.EITtN BAN'£: : ~ HRB NHUE RIVER CROSSING '~ A.K A1 31/01110 lll1QT SONG NHUo7 ~§ "' "'"'11 2nd submission of lechnlcal des91 H 3.Maurls ·"""'"" !!s 1C ....10 UM•'"' H IG. Maurta ·"""'"" CIECKED BYsoAT: Thlad-ngrnJlllnolba-IDal-.d,coplacl<r-rapmcilcad DECK - SA9-SB9 - REINF - BAR LIST -1 I 2HANOI METROPOUTAN RAIL TRANSPORT PROJECT BOARD q 1B ,...,, UPDATE> ~· jG. Mauria "·"""'"" G. Mauris i1 whole ar in part <r used far any prl4)Ca wihoU; lh8 priorwrillBn BAN ~T cAU -SA9-SB9 -COT TH~P- DANH Ml,IC TI-tANH -1 / ~ 1A 31/01/10 Fi181 l8al8 ~· 3.Mauria ·"""'"" BAN OiiAN DUONG sAT00 Tiii HA N()I permissiondHRB. ! • ""'"" -· PROJECTDIRECTORIGIAMe0c IX/AN : CHIEFDESIGNERIa-iott11eM Tii1£T KE: : Bin ve nQ' khOng auqc ph6p ar. d1o11g dllCI mQI hlrll tll)c, ml)I phln hay DRA'MNGNO.IBAN'£: SO : I2A~ B REVISION "" DESCRIPTION ClilEFOFDl!O IDAn bl), mil khOng o!uqc •II' .Dig~ ~IAln bin all. HRB. PIC-TEC-GRR-WVO-J04-18565-B "''"' "" NQI DUNG SO'A 001 THl~ICE "" Cl(JNIGlllETE Alain Bllchereau P.Amaud
  • 115.
    ~ ~ i I!! ~ t ui w.!: F % !I $i !;l 8 ~ uii: B 15 ES1 S1 =--- PARAPET ""....,, STARTER BARS ~i. THANH COT ™E.P NHO RA >CN 2x20-D12 11'150 10 -9 o--~-+-~~-+-~~~~~~~~~~~~~~-+-~~~...._~~...._~~--< Q.IENT: o--~-+-~~-+-~~~~~~~~~~~~~~-+-~~~...._~~...._~~--< CHOflAunr: 3" 21/11Y11 Upda111d A.K 2A 3004'11 2nd aubml11lon at'lechnlcal dMlgn A . K 1C ~8110 A . K ~g ·-..... ca) SECTION A-A MAT CATA-A SCALE: 1/20 TYLl;:1/20 HRB Upda111d 18 2MIBl10 UPDATED A . K HANOI METROPOLITAN RAIL TRANSPORT PROJECT BOARD !----+---+----------------,.-.K----f----1-----l BAN DI/AN llWNG sA.rllOTHI llANQI1A 31m1110 REVISION DATE SLrAOOI Nal.Y Flr"111a» DESCRIPTION NQI DUNGWAfJOI IHIHl!BI' HIM! CllllCIDBI' IOI.! KEY PLAN Ki; HOJ;.CH CHiNH SCALE : 1/200 TYLI0:1/200 .,g co ·-~· M3-D16 Q [Ql150 ~ •PROJECT IMPLEMENTATION CONSULTANT Tl1 VAN lHl,IC HleN DI,/ AN SYSTRAS.A PROJECTDIRECTORGIAMaocDI/AN: Alain B~cheraau FILE NAA1ElTtN e,l,i/£: DESIGNED BYTH1£TK£: A. K CHECKED BYSlll.T: G. Maur1s CHIEF ~IGNERCll) NHleMTH1£rK£: P. Amaud SCALE TYLE: SA9 S3 SB9' @) @) ~i ;;f ;;f --ll--ll---41---11----lll--ll----11.--ll--ll--..i&--"-I~2o..::•:..c13,_-_,,0-'-'12~ 1()36 - I [Ql150 ~ I I 1++--++--++---+f---fl---*--ll--fl--lf-ll-*--++--+ll-+l ----'0~1~6 (ij})§ DD :~ l-*.....,,--!l--!r-+--H--++--11--+-ll-+l--I+--++-': D ~1L-liliiia111~a:0 ~14 ~s____J 0 14 8 ____J - -- ---- - - -( DB 8 (~ @ SECTION 8-B MAT CAT B-B STAlUS TfNH~G : Teclmical Design "scALE : 1/20 TY Li;:1/20 NOTES: ~~~~~~~~~~~~~~~~~~~~~~ GHI CHL.f: 1. REINFORCEMENT YIELD STRENGTH: FY=420 MPA. 1. ClldNG El0 CHAY CllA cx:fTTHE'.P :fy--420 Mpa 2. CONCRETE COVER: C=50 MM. 2. Ld P eeTONG e.<ov£c=50 mm 3. FOR PARAPET S'fARTER BARS REFER TO DWG. NO. 3. EE. XEM THANH COT THe!P CHO'GOA LAN CAN XJN XEM BAN 111:SO PIC-TEC-GRR-WVO-J00-18803-B TO PIC-TEC-GRR-WVO-J00-18808-B PROJECT Ill,/AN: HANOI PILOTLIGHT METRO LINE Sedian Nhon•HantiRailway S1ation TIJY£NflOONG sATElOTHITHIfll~M 1l'HANQI Elatn N~n · Ga Hi NOi FORMATKHO BAN VE: DATENGAY: 31/01/10 Tm.ETtNB,l,iVE: NHUE RIVER CROSSING VU'QT SONG NHUI;:A1 Thil <Rwi'ID mUll:notbe eithlrlOlrled,<q>ied«otl'lll'Wile NP'Odiacl ln wtdeah P11rtorul8dfor•nr prupmewllhoul:.. prlor'Mltsl parmlllllonot HRB. DECK - S3 - REINF - 2 12 BAN W,TcAU -53 • COTTHIOP-2 / 2 ......My_..,.,._......."11 ..... ""'"""-"""iHn'-Y ....~ ...- .........~t~'"""'"""'"""· DRAl'l1NGNO. BANV£SO: PIC-TEC-GRR-WVO-J04-18568-B 3A
  • 116.
    c c Total Lengthsand Weights No l,fNboar l:'o Number of members 1 Boe Type To~al Length hope Bend I Boe Type No fbor Total Lengfh hape Bend I mar• '"" of in,.,h No Code Type D1menmns Shape "" mark '"" of mmN No Code T1pe D1mens1ons Shape "" Type T Type R BENDING DIAMETERS Imm) size m•mb memb size mernO m•mb "" "" "" " "" "" "" " ~ Di•meter. 4 ' ,, ,, " 10 ,. ,, " ,; '" " " '° Lengths of standard hooks Imm]Total Weight Total Total Weight Total Hool<>Diameter Length per unit- Weight Length per unit- Weight " " 00 " " % ,,, 1'0 m 100 "' m '"' "°~ IType1l lo1amo~orsl 6 I B I 10 I 11 I 14 I 10 I rn I 2~ I 12 I 1s I 1B I i1 I io I 40 001 011 1 141 141 2000 00 A=1010 = "" D1B 1 16 16 3280 15 1 A=1496 B=1l11 [=817 '"' [kg/ml [kg] '"' (kg/ml lkg) 0 Frame>~ " " '° " 50 " 100 110 m 150 "' 150 '"' "°6 0 0.222 0.00 IType11 ~ Hook• nchorago ~ ~ B 51 0 395 22.53 IType1l 0 0 0 0 0 0 0 0 0 0 0 0 0 0 IType11 ,, % 110 '" ,., m "' m m 100 110 "' m "°006 014 1 13 1l 5760 25 1 A=iOl B=ODJ [=515 0=515 E=461~ rn 016 1 1l 1l 6270 15 1 A=l1l4 B=Ol (=lll4 ~ " 0 10 74 0 617 45.88 Frames 0 0 0 0 0 0 0 0 0 0 0 0 0 0 @_ From" ,, % 1'0 '" ,., '" "' m m 100 114 "' m "°~ lhoe21 1Typ•21 12 101 0.886 622.56 nchorago 0 0 0 0 0 0 0 0 0 0 0 0 0 0 ~ = ~ ITypo11 001 014 1 1l 1l 5780 25 1 A=OOJ B=O~J [=511 D=SlS E=4614 Oll 016 1 1l 1l 3710 00 A=l709 14 150 1210 181.84 B Fram"~ 0 0 0 0 0 0 0 0 0 0 0 0 0 0 16 144 1.580 365.33 IT'oe21 ~ BS 170 56 BAR DIMENSIONS ~ ~ 1B 2 000 °'" 010 1 16 16 1510 15 1 A=11l 8=141 C=1l49 rn 011 1 16 16 3650 15 1 A=1112 B=S6S [=1781 ~ nchorage20 0 2 470 000 - THE DIMENSIONS ARE GIVEN ON THE OUTSIDE FIBER OF THE REBAR [SEE BELOW! 10 " 00 " " % 10B 110 111 '" "" m "' m ~ ~ 0 ITyp,11 n 11 0 2 980 000 - THE TOTAL LENGTHS ARE CALCULATED ON THE BASIS OF THE CENTERLINE Fram" 10 " 00 " " % 10B 110 111 100 "" m "' m y ~ 1Typo21 000 DB 1 9 9 1130 99 2 A=l9 B=l51 [=l1S m 012 1 16 16 2050 99 1 A=SlO B=149 C=14l4 25 0 3 850 000 1150 3766:2004 - METHOD Bl nchorago ~ 0 0 0 0 0 0 0 0 0 0 0 0 0 0 al=91" <>1=90" 2B 0 4 830 000 - THE BENDING ANGLES ARE GIVEN IN DEGREES B ITypo11 ~ ~ Fram" 0 0 0 0 0 0 0 0 0 0 0 0 0 0 ~ l1 0 6.310 0.00 rl ' n,oe21 011 016 1 16 16 4390 99 2 A=147B=1190[=190D=1191E=1HF=147 OJ" 012 1 40 40 1350 15 1 A=09J B=l97 (=ill ~ a1=m·a1=11"al=1Wal=l1"a5=1JS" rl=SIO l6 0 7 990 0.00 ,,~ 40 0 9.860 0.00 nchorago ;; ;; ;; ;; ;; ;; " BO '" 100 ,,, ,,, 1C< 100 6 t=::=i ~ ----- ,tr- 0 1Typo11 OB OS 1 56 56 5l0 99 1 A=119B=l00 m 010 1 16 16 1350 13 1 A=l215 ~lf Fram" ;; ;; ;; ;; ;; ;; n BO "" 100 ,,, "" "' '"o(Type21 Ikd Type T Type R .......__ n<horage 0 0 0 0 0 0 0 0 0 0 0 0 0 0 n 1Type11 " Fram"010 011 1 6 6 990 99 2 A=110B=150 040 DB 1 3 l 1130 99 1 A=98 B=l51 C=l15 Total Length - Bended: 780 IT•0 ,21 0 0 0 0 0 0 0 0 0 0 0 0 0 0 Total Lengt-h - Straight- rn a 011 1 1 2 950 99 2 Ikd DB 1 6 6 1140 99 1 n Total Length Im] 1312 014 A=150B=150 041 A=l01 B=l51 [=J15 •Total Weight - Bended 914 n Total Weight - Straight· 506 011 012 1 2 2 920 99 2 A=151B=l4J[=l5lD=llOE=ll9F=14lG=111D.. 042 D" 1 6 6 1160 99 2 A=80 B=ll1 C=140 D=l15 Total Weight lkg): 1429 ,, a1=71•a1=10B•o.i=90'a4=90"«1=11'a0= , , Mean Size [mml GENERAL WEIGHT kg VII 1ll I I 1429 I '"""•-m- """[)o-011'- ""'"""'!' ''"'""" -011'- ''""''"'-"'- ~ ' CLIENT: II PROJECT IMPLEMENTATION CONSULTANT FILENMIEITtN BAN'£: : sr.ALEIrtL(: : STATUSTlNHT~: PRO.ECTIDl/ #.! : HANOI PILOT LIGHT METRO LINE Sectkln NOOn - HlllOI Ralway station ~ I CHOEl.Wnr: Tl/ VAA THVC Hll;N DIJ AN PIC-TEC-ORR-WVQ.JIM-1MllMl_JIA.DWa - Technical Design TU1N WONG sATBO rn1 rnlDlt::M TP HA NOi E>olil1 Nh&i- Ge Hill NOi ~ ~ ~ SYSTRAS.A DESIGNED BYITlll£'r KE: : FORtMTIKHO eANv£ : DATEINGAY: Tm.EITtN BAN v£ : ~ HRB NHUE RIVER CROSSING '~ A.K A1 31/01110 lll1QT SONG NHUo7 ~§ "' "'"'11 2nd submission of lechnlcaldes91 H 3.Maurls ·"'"°'"" !!s 1C ....10 UM•'"' H IG. Maurta ·"'"°'"" CIECKED BYsoAT: Thlad-ngrnJlllnolba-IDal-.d,coplacl<r-rapmcilcad DECK-S3 - REINF - BAR LIST-2 I 2HANOI METROPOUTAN RAIL TRANSPORT PROJECT BOARD q 1B ,...,, UPDATE> ~· jG. Mauria "·"'"°'"" G. Mauris i1 whole ar in part <r used far any prl4)Ca wihoU; lh8 priorwrillBn BAN M"'-T cA.U - 53 -COT TI-l~P - DANH MVC TI-IANH - 212 ~ 1A 31/01/10 Fi181 l8al8 ~· 3.Mauria ·"'"°'"" BAN OiiAN DUONG sAT00 1111 HA N()I permissiondHRB. ! • ""'"" ...... PROJECTDIRECTORIGIAMe0c IX/AN : CHIEFDESIGNERIa-iott11eM Tii1£T KE: : Bin ve nQ' khOng auqc ph6p ar. d111g dllCI mQI hlrll tll)c, ml)I phln hay DRA'MNGNO.IBAN v£ SO : I2A~ B REVISION OA7E DESCRIPTION ClilEFOFDl!O IDAn bl), mil khOng o!uqc •II' .Dig~ ~IAln bin all. HRB. PIC-TEC-GRR-WVO-J04-18569-B "''"' "" NQI DUNG SO'A 001 THl~ICE "" Cl(JNIGlllETE Alain Bllchereau P.Amaud
  • 117.
    ~ ~ ~ I!! ~ t ui w.!: F % !I $i !;l 8 ~ uii: B 15 ES1 SAB' SA7' SAS' =----- ~ -~ @ ® 1@ @ PARAPET N S!~ N::ilCi ~· 9i.c:i t?! "'N "N ~ @ 3" 21111r11 Updatlld A.K 2A 30KM/11 2nd •ubmll1lon oflllchnlcal daolgn A.K 10 D1111r!D Updatad A . K ~ ~ n @0... 5': ~~ 9i. ~g ,..t?! ·-,.,., I!:! '------J 9 '------J 0 -4':i: o4':i: ~- 9i& t?! c:i '&SECTION A-A MAT CATA-A "scALE : 1/20 Ti'Li;:1/20 HRB 1C ~B/1D Updatad A . K 18 2Ml&'ID UPDATED A . K 1--=--i;:;=..;.:;...-+-"==--------------+-;;.;.:;...---1===-+.;.;==---1 HANOI METROPOLITAN RAIL TRANSPORT PROJECT BOARD 1A 31m1/1D Fl..tilaJll REVISION DATE SLrAOOI Nal.Y A . K DESCRIPTION IHIHl!BI' NQI DUNGWAfJOI HIM! CllllClllBI' IOI.! BAN DI/AN llWNG sA.ra0 THI HA NQI SA9 S3 SB9 KEY PLAN K~ HO~CH CH[NH n 9 ..,ocg ·-c;:&,., @ .o:il 9i.t?! • @ SCALE : 1/200 l'1' Li;:11200 PROJECT IMPLEMENTATION CONSULTANT Tl1 VAN THl,IC HleN DI,/ AN SYSTRAS.A PROJECTDIRECTORGIAMaocDI/AN: Alain B~cheraau n @ 85,_ c;:a..., 2x13-D16 f'iWi~ @l15D '.'.../ FILE NAA1ElTtNBAN/£: DESIGNED BYTHli;rK£: A. K CHECKED BYSlll.T: G. Maur1s CHIEF ~IGNERCll) NHleMTH1£r Ke: P. Amaud ES2 er~NO. 1 &2 IS COMING FROMABUTMENT THROUGITTTHE SEGMENT. REFER DWG. NO. PIC-TEC-GRR-WVO-J04-18593.S 1ES ES2 001 --- ~ ~S1 SA9' S2 SB9' ~ 1 ~ .-' ¥ -~ _- - -., ' ' ' ' I 2x13- D12 I @1150 @)- I I D16 (§' I I I I I I I I D14 s- - ·- ' D14 85] 5[ _ __ - -' D16 @) SCALE TYLE: FORMATKHO BAN VE: A1 STAlUS TfNH~G : Teclmical Design DATEINGAY: 31/01/10 Thil <Rwi'ID mUll:notbe eithlrlOlrled,<q>ied«otl'lll'Wile NP'Odiacl ln wtdeah P11rtorul8dfor•nr prupmewllhoul:.. prlor'Mltsl parmlllllonot HRB. ......My_..,.,._...,,,ng.......,......_m(ll,..,,t.y .... ~ ... - ......... ~f....YGnb6n cOo HRB. SECTION B-B M~T CAT B-B SCALE: 1/20 TYLIS:1/20 NOTES: ~~~~~~~~~~~~~~~~~~~~~~ GHI CHL.f: 1. REINFORCEMENT YIELD STRENGTH: FY=420 MPA. 1. ClldNG El0 CHAY CllA cx:fTTHE'.P :fy"-420 Mpa 2. CONCRETE COVER: C=50 MM. 2. Ld P eeTONG e.<ov£c=50 mm 3. FOR PARAPET S'fARTER BARS REFER TO DWG. NO. 3. EE. XEM THANH COT THe!P CHO'GOA LAN CAN XJN XEM BAN 111:SO PIC-TEC-GRR-WVO-J00-18803-B TO PIC-TEC-GRR-WVO-J00-18808-B PROJECT CVAN: HANOI PILOTLIGHT METRO LINE SediDn Nhon•HantiRailway S1atiCln TIJY£NflOONG sATEJ0THITHIe1eMTPHANQI Batn N~n · GaHi NOi Tm.ETtNBAN1£: NHUE RIVER CROSSING VU'QT SONG NHUI;: DECK- 51-52 - REINF-2 / 2 BAN ~TcAU-8 1 -82 • COTTHi:P-2 / 2 DRAl'l1NGNO. BANV£SO: PIC-TEC-GRR-WVO-J04-18572-B 3A
  • 118.
    c Total Lengths andWeights f:'o L thlShape I l:"o I Number of members 1 "" T1pe No fbor Total Bend "" Type No fbar Totol Lengfh hope Bend mark '"" of ""'h No '"9 [ode Type Dimensions Shape "" mark '"" of mmh No Code Type D1mens1ons Shope "" Type T Type R size memb mmO size mernb memb " " " " '' '' '' " ~ Total Weight Total Total Weight Total ~ Diameter Length per unit Weight Length per unit Weight 004 D14 1 13 13 5780 25 1 A~OOl B~6~l C~S15 D~SJS E~4611 ~ m D16 1 13 13 6270 15 1 A~lll4 B~Ol C~l1l4 ,,, [kg/ml [kgl ,,, Ikg/ml [kg] ~ 6 0 0.222 0.00 ~ ~ = 8 51 0 395 22.53 001 D14 1 13 13 5780 25 1 A~OOl B~O~l [~515 D~SJS E~461• m D16 1 13 13 3710 00 Aol109 ~ 10 14 0 617 45.BB ~ 11 114 0.888 189.62 ~ ~ ~ ,,, DlO 1 16 16 1510 15 1 Aolll Bol41 Co1349 034 D11 1 16 16 3650 15 1 Ao1011Bo505[olJll 14 150 1210 181.84 ~ 16 311 1.580 566 21 n. ~ IJ::d> 18 85 2 000 170 56 000 DO 1 9 9 1130 99 1 A~99 BdSI C~l1S m D11 1 16 16 2050 99 1 A~SlO B~l49 C~14l4 ~ «1~91' ~z~90• 10 0 2 470 000 ~ 11 0 2 980 000 , . ~ ~ 0 3 850 0 00910 D16 1 13 13 9780 99 1 A=l4J B=4011 (=139 0=4014 E=135 f=lt-," °'" D11 1 40 40 1350 15 1 A=69l Bd91 [=6Jl 15 a1=1JS"<>Z=118"<>l=1Z"<>•=11"<>5=1l5" rl=Sli ~ 18 0 4 830 0 00 ' ~ ' E::::=i 31 0 6J10 D.00 011 D16 1 16 16 4390 99 1 A=llJ 8=1191 [=190 D=l791 E=1H F=141 m D10 1 16 16 1350 13 1 A=1115 ~ 36 0 7 990 D.00<X1=1JS"<XZ=71"aM03"<>>=71"a5=1J5" ~ 6 n. 40 0 9.860 D.00~ °" DB 1 56 56 530 99 1 A=l19 BdO~ m DB 1 3 3 1130 99 1 A=98 B=l51 [=J15 Ikd n. Type T Type R °" D11 1 4 4 990 99 1 A=l10 B=l50 0'1 D8 1 6 6 1140 99 1 A=101 B=l51 C=l15 Total Length - Bended: 903 Total Length- Straight. 4B D11 1 1 1 1090 99 1 Ikd D8 1 6 6 1160 99 1 ft Total Length [ml 951 016 A=l9J 8=168 °" A=iO 8=l51 C=14~ D=l15 Total Weight - Bended· 1122 Total Weight - Straight 16 "31 °'" 1 16 16 3280 1S 1 A=1490 B=ZJ71 [=IQI ~ Total Weight [kg]: 1197 Mean Size Imm] GENERAL WEIGHT kg I 14 3 I I 1197 I ""'"'"-OTP- '"""" -011'- ""'"""'"' c BENDING DIAMETERS Imm) Diame~ers 4 " 10 11 14 16 '" 10 " i; '" 3, 34 40 Lengths of standard hooks Imm) Hooks ITyp' 11 34 '" 40 11 "' % '°" 1'0 131 140 1'4 1;4 '"" 310 I Diame~ors I o I BI 1a 111I14 I 10 I rn I 20 I 11 I 1sl 1al i1 I io I 4o 0 Fram" (Type 1:) " 3, 40 '" 54 " 19" 1'0 m 1;0 "' ,;4 '"" 3'0 Hook• 0 0 0 0 0 0 0 0 0 0 0 0 0 0 nchorago " % "° '" 16e "' "' m m "° m '"' "' '"°• !Typo 11 0 ITyp,11 Frornos " " 0 9 " 0 " 0 " 9 0 " 0 0 @_ Fram., " % "° '" 16e "' "' m m "° m '"' "' '"°ihoe21 1Type11 nchorago 9 0 0 9 0 0 0 0 0 0 0 0 0 0ITypo11 0 Fram•• (Woe 11 0 0 0 0 0 0 0 0 0 9 0 0 0 0 BAR DIMENSIONS - THE DIMENSIONS ARE GIVEN ON THE OUTSIDE FIBER OF THE REBAR [SEE BELOW! nchorage " '" 40 11 "' % '°" 1'9 m '" "' "' '" '"ITyp,11 ~ 0 Fram.,-THE TOTAL LENGTHS ARE CALCULATED ON THE BASIS OF THE CENTERLINE " '" 40 11 "' % '°" "" m 1;0 16e "' ,16 m [ISO 3766:2004 - METHOD Bl 1Typo21 nchorago 0 0 0 0 0 0 0 0 0 0 0 0 0 0 - THE BENDING ANGLES ARE GIVEN IN DEGREES 0 ITypo11 Fram., 0 0 0 0 0 0 0 0 0 9 0 0 0 0 ~ ' (Woe 11 ., l"nchorage 4; 4; 4; 4; 4; 4; 11 "° "" 100 "' "" '" ,40 Jt- 1Type11 0 Fram., ~ > (Typell 4; 4; 4; 4; 4; 4; " "° "" 100 "' "' '" ,,0 - l""'horage 0 0 0 9 0 0 0 0 0 0 0 0 0 01Type11 • Frames 1Tvoe21 0 0 0 0 0 0 0 0 0 " 0 0 0 0 a • •; ';i__ '"""'"•-DTP- ,,,.,.,._.,,_ ~ ' CLIENT: II PROJECT IMPLEMENTATION CONSULTANT FILENMIEITtN BAN v£ : sr.ALEIrtL(: : STATUSTlNHT~: PRO.ECTIDl/ #.! : HANOI PILOT LIGHT METRO LINE Sectkln NOOn - HlllOI Ralway station ~ I CHOEl.Wnr: Tl/ VAA THVC Hll;N DIJ AN PIC-TEC-ORR-WVQ.JIM-1Bli7Ml_JIA.DWa - Technical Design TU1N WONG sATBO rn1 rnl Dlt::M TP HANOi E>olil1 Nh&i- Ge Hill NOi ! ~ ~ SYSTRAS.A DESIGNED BYITlll£'rKE: : FORtMTIKHO eANv£ : DATEINGAY: Tm.EITtN BAN v£ :2A '''""' 2nd 1ubmi11ion of technical d811ign ~· 3.Mauria ........ HRB NHUE RIVER CROSSING '~ A.K A1 31/01110 lll1QT SONG NHUo7 ~§ '" 01/1Cll10 """"'"' H 3.Maurls ........ !!s '' ,...,, UM•1"d H IG. Maurta ........ CIECKED BYsoAT: Thia dr-ing rnJlll not ... - IDar-.d, coplacl ....- rapmcilcad DECK- S1-S2 - REINF - BAR LIST-2 I 2HANOI METROPOUTAN RAIL TRANSPORT PROJECT BOARD q ,. ,...,, UPDATE> ~· jG. Mauria "·""""' G. Mauris i1 whole ar in part or used for any prl4)Ca wihoU; lh8 priorwrillBn BAN ~T cA.U -81-82 - COT TH~P - DANH Ml,JC THANH - 212 ~ " 31/01/10 Fi181 llal8 ~· 3.Mauria ........ BAN OiiAN DUONG sAT00 Tiii HA N()I permissiondHRB. ! • ""'"" ..... PROJECTDIRECTORIGIAMe0c IX/AN : CHIEFDESIGNERIa-iott11eM Tiii~ KE: : Bin ve nQ" khOng auqc ph6p ar. dlol'IQ dllCI mQI hlrll tll)c, ml)I phln hay DRA'MNGNO.IBAN v£: SO : I2A~ B REVISION OAJE DESCRIPTION ClilEFOFDl!O IDAn bl), mil khOng o!uqc •II' .Dig~ ~IAln bin all. HRB. PIC-TEC-GRR-WVO-J04-18573-B8(/AOO "'" NQI DUNG SO'A 001 THl~ICE "" ClllNIGlllETE Alain Bllchereau P.Amaud
  • 119.
    ~=-- ~~ ~ y 7---- N ~~ D D r=n D ,=,--, ~I , I I I I I I "TR'" T fT I I I I I I I I I I I I I 18 20~ ,-----i 120 I ......h I I I 21 Ll.1a.JJ 21 I I. o'b) 7078 Q @ D16 ...._, I 18 :;e 0 :;e I ~~@ 20~ ,-----i 120 ~ D16 ' Ir "Iii I ~8 21 Ll.1a.JJ 21 ' I 020 I I I I I 8 I -·· c . I t J10GJ10 § D16 ' ' D16 8I l ~@) D16 D16 @) LlGim I I ?---- I I I I I I ---vI I I rs D16 I l 020 [055 18 I I I ' I I I I I 20~ ,-----i 120 I 1 I I I I D16 @ 21Ll.1a.JJ21 I! I I @ 016 I I I I - I &--- ~I . I 8 020 I ' D16 @--- D r--1 8 I r-- I I ,,--.. •"-- I020 ' i.: I 1 v i 18 20~ ,-----i 120 I I 21 Ll.1a.JJ 21 I I I I I I I I I I I m NOTES: I J I GHI CHL.f: 4t- I' I ~ 1. REINFORCEMENT YIELD STRENGTH: FY=420 MPA. ~ 1. ClldNG El0 CHAY CllA cx:fTTHE'.P :fy--420 Mpa L'=J.-1 "' 4 c.-t='-J 2. CONCRETE COVER: C=50 MM. 0 PLAN VIEW 2.Ld PeeTONGe.<o ~ c=50 mm --9 MAT BANG 3. FOR PARAPETS ARTER BARS REFER TO DWG. NO. 3.EE. XEM THANHCOT THe!PCHO'GOALANCAN XJNXEM BAN VESO S°CALE: 1/20 PIC-TEC-GRR-WVO-J00-18803-B TO PIC-TEC-GRR-WVO-J00-18808-B TY Li1::1120 a.JENT: •PROJECT IMPLEMENTATIONCONSULTANT FILE NAA1ElTtNBAN/£: SCALE TYLE: STAlUSTfNH~G : PROJECT CVAN: HANOIPILOTLIGHT METRO LINE Sedian Nhon•HantiRailwayS1atial I!! CHOflAu 11: 11 VAN THl,IC HleNDI,/ AN Teclmical Oesign ~ PIC-TEC-GRlt-Wll'OJD4-1151!D8...»..DW - TIJY£NellONGsATEJOllilTHIe1eMTPHANQI BatnN~n. GaHi NOi SYSTRAS.A u 3" 21/11Y11 Upda111d A. K .M1nnto . .laing HRB DESIGNED BYTHli;rK£ : FORMATKHO BAN VE: DAlENGAY: Tm.E TtNBANVE: NHUE RIVER CROSSING 2A 3004'11 2nd aubml11lon at'lechnlcal dMlgn A.K n . Mouill ... Arnaud A. K A1 31/01/10 VU'QT SONG NHUI;: w .!: F % 1C ~8110 Upda111d A.K n . Mouill ... Arnaud CHECKED BYSlll.T: DECK- PS1-PS2 - REINF -1/5!I $i 18 2Ml&'IO UPDATED A.K . Mouill ... Arnaud HANOI METROPOLITAN RAIL TRANSPORT PROJECT BOARD Thil <Rwi'IDmUll:notbe eithlrlOlrled,<q>ied«otl'lll'Wile NP'Odiacl !;l 8 G. Maur1s ln wtdea h P11rt orul8dfor•nr prupme wllhoul:.. prlor'Mltsl u 1A 31m1110 Fl'"111a» A.K ll. Mouill P. Arnoud BAN DI/AN llWNG sA.ra0 THI HA NQI parmlllllonot HRB. BAN ~T cAU - PS1-PS2 ·COT THi:P - 1 / 5 REVISION DATE DESCRIPTION IHIHl!BI' CllllCIDBI' l>&IJ"lllllill PROJECTDIRECTORGIAMaocDI/AN: CHIEF~IGNERCll) NHleMlll1£rKe: ......My_..,.,._......."11 ..... ..,.•..,. _m(llpMnt.y DRAl'l1NGNO.BANV£SO: I3AB SLrAOOI Nal.Y NQI DUNGWAfJOI HIM! IOI.! otl1t11;M1111!rl! Alain B~cheraau P. Amaud .... ~ ... - .........~t~ ,,.,, ...... HRB. PIC-TEC-GRR-WVO-J04-18580-B
  • 120.
    ~ ~ "' I!! I ~ 11 uiw g F % !I $i !;l 8 ~ uii: B ~~·o ,~8'," , E4 @'°Pr"I 1'°~~·o l ~ T 0@, ; T ~ 21Ll1a.JJ21 T~ 'I T i~---+,-r1~-,~, -~,,~,~~-o=+--~~, ,~,-~, '~~!!~/-~/ /-~/ !~!----.---'JI~/-~!/~!-~!l~/-~/1 IL 1r n II II ,, ,_ I<- D '- f-- ~/ "' 016 DETAILX CHI Tl~TX 016 @) ] 025 <§ 04 9 L--...J 014 9 m111111 I 014@ §-;,~~~~~~c==-~~~==~~~~~lt~fl~w]]!~[[[[[[[IJIIIllIIJ[[]]]W7 1lll"UI/ ~~~~010~8 ~ ~$ ~= ~ 4 4 - SECTION 1-1 MAT CAT 1-1 •SCALE: 1/20 TYLS:112D I 28 F==============J;-~~~~~~11-+--'----"D-'-'16'---(§ f:l I 8 ~10f-~---if--~~~~~~~~~~~~~~~~~~ r,;;;;;, 2x3-016 SECTION 2-2 v @ 150 MAT CAT 2-2 -SCALE : 1/20 TY LS:112D = 016 s NOTES: ~~~~~~~~~~~~~~~~~~~~~ GHI CHL.f: 1. REINFORCEMENT YIELD STRENGTH: FY=420 MPA. 1. ClldNG El0 CHAY CllA cx:fTTHE'.P :fy""-420 Mpa 2. CONCRETE COVER: C=50 MM. 2. Ld P eeTONG e.<ov£c=5D mm 3. FOR PARAPET S"fARTER BARS REFER TO DWG. NO. 3. EJE. XEM THANH COT THe!P CHO'GOA LAN CAN XJN XEM BAN VE SO PIC-TEC-GRR-WVO-J00-18803-B TO PIC-TEC-GRR-WVO-J00-18808-B o--~-+-~~+--~~~~~~~~~~~~~_._~~~.._~__..._~___. Q.IENT: o--~-+-~~+--~~~~~~~~~~~~~_._~~~.._~__..._~___. CHOflAunr: • PROJECT IMPLEMENTATION CONSULTANT Tl1 VAN THl,IC HleN DI,/ AN FILE NAA1ElTtN e,l,i/£: SCALE TYLE: STAlUS TfNH~G : Teclmical Design PROJECT DI,/AN: HANOI PILOTLIGHT METRO LINE Sedion Nhon•HantiRailway S1atial TIJY£NflOONG sAr EJ0THITHIfll~M TP HANQI Elatn N~n · Ga Hi NOi 3" 21/11Y11 Upda111d A.K .Mowrto LI•.laing 2A 3004'11 2nd aubml11lon at'lechnlcal dMlgn A.K n. Mowrto ... Arnaud 1C ~8110 Upda111d A.K n. Mowrto ... Arnaud 18 2Ml&'IO UPDATED A.K . Mowrto ... Arnaud 1A 31m1110 Flr"111a» A.K ll. Mowrto P. Arnoud REVISION DATE DESCRIPTION IHIHl!BI' CllllClllBI' l>&IJ"lllllill SLrAOOI Nal.Y NQI DUNGWAfJOI HIM! IOI.! otl1t11;M1111!rl! SYSTRAS.A HRB DESIGNED BYTH1£TK£ : A. K HANOI METROPOLITAN RAIL TRANSPORT PROJECT BOARD BAN DI/AN llWNG sA.Ta0 THI HA NQI PROJECTDIRECTORGIAMaocDI/AN: CHECKED BYSlll.T: G. Maur1s CHIEF ~IGNERCll) NHleMlll1£rK£: Alain B~cheraau P. Amaud FORMATKHO BAN VE: A1 DAlENGAY: 31/01/10 Thil <Rwi'ID mUll:notbe eithlrlOlrled,<q>ied«otl'lll'Wile NP'Odiacl ln wtdeah P11rtorul8dfor•nr prupmewllhoul:.. prlor'Mltsl parmlllllonot HRB. ......My_..,.,._.....,ng.......,......_m(llpMnt.y ....~ ...- .........~t~'"""'""'""""· Tm.ETtNB,l,iVE: NHUE RIVER CROSSING VU'QT SONG NHUI;: DECK- PS1-PS2 - REINF - 2 / 5 BAN ~T cAU - PS1-PS2 ·COT THi:P - 2 / 5 DRAl'l1NGNO. BANV£so: IPIC-TEC-GRR-WVO-J04-18581-B 3A
  • 121.
    ~ ~ it i ~ii: =--- s ®-LONGllJDINAL BAR THANH c0TTHeP DOC ® -- LONGllJDINAL BAR TliANH OOT THeP DQC @' - @~~@t" fo') '[]y,..o 9c;!i!! ••""N ~•..... I,,, N ~ "' "'0 o o o (~"'2 1 . @LONG. BAR . TliANH OOT THe P DQC 20L~fl20 ~ J@) @ 21 l1s...J 21"'0 a e (]10 ~9 012 so @----="'--~~-= 1=""=il=l<l=l="'=*=>l='11='11=,/'=' ~15 @)~D_16_--H+-ll-< ~ @)__[JD~16__~=jt:j!tlt!j==j==jt==jj== @ LONG.BAR THANH COT THeP DOC I!! ~ o--~-+-~~+--~~~~~~~~~~~~~_._~~~...._~__....._~___. Q.IENT: o--~-+-~~+--~~~~~~~~~~~~~_._~~~...._~__....._~___. CHOflAuru: 20r~120 ~ 21LLis_JJ21 c; SECTION A-A MAT CAT A-A SCALE: 1120T'1' Li;:1/20 20~~~20 s 21Llls...JJ21 SECTION A'-A' MAT CAT A'-A' SCALE: 1/20 T'1'Ll;::1/20 ~ 0 ..Oon,.._ 91& 0 N 0 N 0 @) 20~~120 ~ 21Llls...JJ21D - ...CiI N •PROJECT IMPLEMENTATION CONSULTANT 11 VAN THl,IC HleN DI,/ AN SYSTRAS.A u 3" 21/11Y11 Upda111d 2A 3004'11 2nd aubml11lon at'lechnlcal dMlgn A. K HRBA . K w .!: F % !I $i !;l 8 uB 1C ~8110 Upda111d A . K 18 2Ml&'"IO UPDATED 1A 31m1110 Flr"1 ilaJlt A . K HANOI METROPOLITAN RAIL TRANSPORT PROJECT BOARD !----+---+----------------,.-.K---4----+-----l BAN DI/AN llWNG IA.TllOTHI llANQI REVISION DATE SLrAOOI N0AY DESCRIPTION NQI DUNGWAfJOI IHIHl!BI' HIM! CllllClllBI' IOI.! PROJECTDIRECTORGIAMaocDI/AN: Alain B~cheraau FILE NAA1ElTtN e,l,i/£: DESIGNED BY TH1£TK£ : A. K CHECKED BYSlll.T: G. Maur1s CHIEF~IGNERCll) NHleMTH1£rK£: P. Amaud 043 ~~ "'""- ~ o - 0 o- -6@., N J, @., ~ D ~ ' ' ' ' ' ' ' ' ' 0 , - 18 016 016 04 016016 I ~ I l016 II t. 016 I l . ~ I 016 I "- I = I 016 I I 025 I 28 @[J 0/ s 20r,----i 120 s 21Llls...JJ21 203@ 80 =016 812 ~M - 016 I @ @1150 -SECTION 3 3 MAT CAT3-3 I 2x5- 016 @1150 @) SCALE TYLE: FORMATKHO BAN VE: A1 STAlUS TfNH~G : Teclmical Design DATENGAY: 31/01/10 Thil <Rwi'IDmUll:notbe eithlrlOlrled,<q>ied«otl'lll'Wile NP'Odiacl ln wtdea h P11rt orul8dfor•nr prupmewllhoul:.. prlor'Mltsl parmlllllonot HRB. ......My_..,.,._.......ng ..... ..,.. .... _m(ll,..,,t.y .... ~ ... - ......... ~f....YGnb6n cOo HRB. SCALE: 1/20 T'1' Lf;::1/20 NOTES: ~~~~~~~~~~~~~~~~~~~~~ GHI CHL.f: 1. REINFORCEMENT YIELD STRENGTH: FY=420MPA. 1. ClldNG El0 CHAY CllA cx:fTTHE'.P :fy--420 Mpa 2. CONCRETE COVER: C=50 MM. 2. Ld P eeTONG e.<ov£c=50 mm 3. FOR PARAPET S"fARTER BARS REFER TO DWG. NO. 3. EJE. XEM THANH COT THe!P CHO' COA LAN CAN XJNXEM BAN 111:SO PIC-TEC-GRR-WVO-J00-18803-B TO PIC-TEC-GRR-WVO-J00-18808-B PROJECT CVAN: HANOI PILOTLIGHT METRO LINE Sedian Nhon•HantiRailwayS1atiCln TIJY£NflOONG sATEJ0THITHIe1eMTPHANQI BatnN~n · Ga Hi NOi Tm.E ~Ne,l,IVE : NHUE RIVER CROSSING VU'QT SONG NHUI;: DECK- PS1-PS2 - REINF - 3 / 5 BAN ~T cAU - PS1-PS2 ·COT THi:P - 3 / 5 DRAl'l1NGNO. BANVESO: PIC-TEC-GRR-WVO-J04-18582-B 3A
  • 122.
    ~ ~ i I!! ~ t ui w.!: F % !I $i !;l 8 ~ uii: B =--- s-LONGliJDINAL BAR THANH COT THeP DOC =--- 8 N 0 @- LONGliJDINAL BAR THANH COT THeP DOC -9 012 n 9 @ ' -9 012 c:---@) 4xSx10-010 @l 300 L-~....L.~~-'--~~~~~~~~~~~~~~-4-~~~~~~~~~-1 Q.IENT: @> = ="' 9@ L-~....L.~~-'--~~~~~~~~~~~~~~-4-~~~~~~~~~-1 CHOflAuru: 3" 21/11Y11 Upda111d A. K 2A 3004'11 2nd aubml11lon at'lechnlcal dMlgn A . K - @ LONG.BAR THANH COT THl:P DOC -8 =N Cf> C?@ ~ © L--....J c§= ="' 9~ -.o= @- "' ~ o - 6@, N ~ "'c; @ LONG.BAR THANH COT THeP DOC HRB 1C ~8110 Upda111d 18 2Ml&'IO UPDATED A . K L-~..J!=~..i....:::t:::=--------------+:,,::..:_ K:._---i:::;..:::=--+.;..:.::=~ HANOI METROPOLITAN RAIL TRANSPORT PROJECT BOARD 1A 31m1110 REVISION DATE SLrAOOI Nal.Y Flr"111a» DESCRIPTION NQI DUNGWAfJOI " ·K BAN DI/AN allONG sA.TaO THI HA NQI IHIHl!BI' HIM! CllllClllBI' IOI.! SECTION C-C MATCATC-C SCALE: 1/20 TI'LS:1/20 L--....J • <§ ~5; o - 6@, N ~ SECTION D-D MATCATD-D SCALE: 1/20 IT Li0:1120 PROJECT IMPLEMENTATION CONSULTANT 11 VAN THl,IC HleN DI,/ AN SYSTRAS.A PROJECTDIRECTOR GIAMaocDI/AN: Alain B~cheraau 2x2•6-D16 ®{)(1150 2x2x20-025 81@150 016 ® {) 2x2x20- D2S @l 50 FILE NAA1ElTtN eAN/£: DESIGNED BYTH1"1K£ : A. K CHECKED BYSlll.T: G. Maur1s CHIEF~IGNERCll) NHleMTH1£r Ke: P. Amaud SCALETYLE: FORMATKHO BAN VE: A1 STAlUS TfNH~G : Teclmical Design DATENGAY: 31/01/10 Thil <Rwi'IDmUll:notbe eithlrlOlrled,<q>ied«otl'lll'Wile NP'Odiacl ln wtdea h P11rt orul8dfor•nr prupmewllhoul:.. prlor'Mltsl parmlllllonot HRB. ......My_..,.,._.......ng ..... ..,.. .... _m(llpMnt.y ....~ ...- .........~ t ~ ,,.,,..., ...HRB. @ "'"'- r- 'T@,_,__ N~ N x !"!. D DETAILX CHI Tli;Tx SCALE : 1/10 TI' LI;: : 1/10 NOTES: ~~~~~~~~~~~~~~~~~~~~~~ GHI CHL.f: 1. REINFORCEMENT YIELD STRENGTH: FY=420 MPA. 1. ClldNG El0 CHAY CllA cx:fTTHE'.P :fy--420 Mpa 2. CONCRETE COVER: C=50 MM. 2. Ld P eeTONG e.<o v£c=50 mm 3. FOR PARAPET S"fARTER BARS REFER TO DWG. NO. 3. EJS XEM THANHCOT THe!P CHO' COA LAN CAN XJNXEM BAN VE SO PIC-TEC-GRR-WVO-J00-18803-B TO PIC-TEC-GRR-WVO-J00-18808-B PROJECT DVAN: HANOI PILOTLIGHT METRO LINE Sedion Nhon•HantiRailwayS1atial TIJY£NflOONG SAT EJ0THITHIe1eMTPHANQI Batn N~n · GaHi NOi Tm.ETtNeAN1£: NHUE RIVER CROSSING VU'QT SONG NHUI;: DECK- PS1-PS2- REINF -4 / 5 BAN ~T cAU - PS1-PS2 ·COT THi:P - 4 / 5 DRAl'l1NGNO. BANV£SO: PIC-TEC-GRR-WVO-J04-18583-B 3A
  • 123.
    ,(J..0 ~ ~'@' 17 =----- .......____ ,-----, 15015@) 8 s' @I @ ® 9 ~ )38N _,, = ::::~ ~= ~8 81~1 ~ o 2~ c"' 0 o~ = ...~ ~@. N 911. 9i .,,D 911. "D x .. 5! -i N ..fC I~ t- ... I I n...._o~ ~ ~x .I fC y1 ~~. ~1 .LI .,. u: } ·Y • LI• r1- ..... u ,re_'<:? f ~o_...n 1y 1;1 ~f' ( ::> 0 (', ~ 3oc:Jo ~ ' u u " ,, ~ - s 020 l I i I l l ' ' ~ ' ~ ~ . ~9 012 " u u ,. '--------"® 020 I I (§)- l.. ., ~ ' ' ~ ' ~ l l ' ~ ' ~ ~ 016 @lII I . j I~ @) 012 LONGITIJDINAL BAR w@l 016 ' ..fn ~ THANH COT THE.P DQC 30 0 I]' 1 n. # l.n I , [] @ 4x10-D16; l~ :rl(IHOO l 3x2x20-020 ,~ lh f lh 16 16 132 [@ ~ 't0 Kl 32( 133 @1150 ~ · ~ ) (@) II , YI 016 (@) " 025 fs!J! I 016 ~ ~ l/, 30Wo 0; p l~x6x5-016 020 @[17 I 16016 @) dJ 'f II (@) I 025 SI rr @ ~ = I (al150 I ~. ~ :rl 132 t ;;I .!. 32( 133 I D1' ~ / II "l/; I = 1) 11 ~ ~- 1qf, 016 § '=8 016 8 ~ &,11 I I n 010 @) n " "'I/ = = = ~ f--. h- = = t= = j ;~ 10NG.BAR I 4,,""'""0""8 1 - SECTION 4-4SECTION B-8 M~T CAT B-B M~T CAT 4-4 SCALE: 1f20 SCALE : 1f20 TYLJ;:1120 TY Ll;:1120 - NOTES: GHI CHL.f: 1. REINFORCEMENT YIELD STRENGTH: FY=420 MPA. 1. ClldNG El0 CHAY CllA cx:fTTHE'.P :fy--420 Mpa 2. CONCRETE COVER: C=50 MM. 2.Ld PeeTONG e.<o~ c=50 mm 3. FOR PARAPETS ARTER BARS REFER TO DWG. NO. 3.EE. XEM THANH COT THJ:PCHO'COA LAN CAN XJNXEM BAN 111:SO PIC-TEC-GRR-WVO-J00-18803-B TO PIC-TEC.GRR-WVO-J00-18808-B I!! Q.IENT: •PROJECT IMPLEMENTATIONCONSULTANT FILE NAA1ElTtNeMi/£: SCALETYLE: STAlUSTfNH~G : PROJECT CVAN: HANOIPILOTLIGHT METRO LINE Sedian Nhon•HantiRailwllyS1atial ~ CHOflAu 11: 11 VAN lHl,IC HleN DI,/ AN Teclmical Oesign PIC-TEC-GRlt-Wll'OJD4-1151M-B...»..DW - TIJY£NflOONG sATEJ0llilTHIfll~M TPHANQJ BatnN~n. Ga Hi NOi u SYSTRAS.A DESIGNED BYTHi£rK£: FORMAT KHO BAN VE: DAlENGAY: 3" 21/11Y11 Upda111d A.K .M1nnto u..laing HRB Tm.ETtNilMIVE: NHUE RIVER CROSSING 2A 3004'11 2nd aubml11lon at'lechnlcal dMlgn A.K o . Mou1111 P. Amoud A. K A1 31/01/10 VU'QT SONG NHUI;: w g F % 1C ~8110 Updalad A.K o . Mou1111 P. Amoud CHECKED BYSlll.T: !I $i HANOI METROPOLITAN RAIL TRANSPORT PROJECT BOARD Thil <Rwi'ID mUll:notbe eithlrlOlrled,<q>ied«otl'lll'Wile NP'Odiacl DECK- PS1-PS2 - REINF - 5/ 5 !;l 8 18 2Ml&'"IO UPDATED A.K . Moulto P. Amoud BAN DI/AN llWNG sA.ra0 THI HA NQI G. Maur1s ln wtdeah P11rtor ul8dfor •nr prupmewllhoul:.. prlor'Mltsl BAN ~T cAU - PS1-PS2 ·COT THi:P - 5 / 5 u 1A 31m1110 FllOilla» A.K JJ. Moulto P. Amoud parmlllllonot HRB. PROJECTDIRECTOR GIAMaocDI/AN: CHIEF~IGNERCll) NHleMlll1£rK£: REVISION DATE DESCRIPTION IHIHl!BI' CllllClllBI' l>&IJ"lllllill ......My_..,.,._......."11 ..... ..,.. .... _m(llpMni.y DRAl'l1NGNO,BANVESO: I3AB SLrAOOI Nal.Y NQI DUNGsLrAfJOI HIM! IOI.! otl1t11;M1111!rl! Alain B~cheraau P. Amaud ....~ ...- .........~t~'"""'""'""""· PIC-TEC-GRR-WVO-J04-18584-B
  • 124.
    e.. TIJll No. ~Tahl length~ B!lld e.. TIJll No. ~'t. Totil Length """' B!lld e.. TJPI No. ~t Totil Length ~ B!lld e.. TIJll No. ~~ Tahl Length """ B!lld 1111< Old " Na. T1pe IJileRSiDRS Shipe RH. 1111< Old "~... No. Cade TIJll llillensin Shipe R". 1111< Old ".... No. TJPI - Shape RH. 1111< Old "~... N• Cade TJPI -.. Shipe RH. ... -- ... -- ... -- ... --- - - - ~ Gd y001 012 1 238 238 10120 00 A=10119 013 016 1 12 12 3850 99 2 A=183 B=1515-•1114 C=1BZO 022 016 1 6 6 2930 99 2 A=791 B=446 C=1166 032 016 1 60 60 2880 21 2 A=809 B=435 C=1139-•Z1'JB MEAN o:1=80" 0:1=95°0:2=90" MEAN ~"" OnE -- '"'"' •nE mw• "'"002 016 1 30 30 1050( 25 1 A=3496 B=3496 C=250 D=250 E=3506 ~ 014 016 1 10 10 4415 99 2 A=111 B=2146->1509 C=1820 ~ 023 016 1 6 6 3685 99 2 A=714 8=1036-,1365 [=1765 ~ 033 016 1 60 60 2860 21 2 A=2218-o1139 B=435 [=791 fhdlMEAN <ll1=72° MEAN 0:1=68° MEAN ~"" on• -- d ~"" on• -- d '"~ one mw• "'" 003 016 1 30 30 10510 25 1 A=350B B=350B [=314 0=314 E=3494 ~ 015 016 1 2 2 6640 21 2 A=1820 B=lD'J2 [=1820 024 016 1 6 6 5845 21 2 A=1815 B=2HZ->200l [=1875 041 018 1 120 120 3350 15 1 A=2602 B=2412 C=775 ~MEAN d ~"" '"'--006 016 1 21 21 5470 21 2 A=1820 B=755-•3056 C=1B20 016 016 1 40 40 3230 11 2 A=l011 B=251 ~ 025 016 1 6 6 2880 99 2 A=791 8=400 C=1764 Gd 042 016 1 40 40 6270 15 1 A=l134 8=63 C=l134 ~MEAN o:l=9l"o:2=90" PHllCJ one lmw• "'" d d ~ " c 007 016 1 21 21 5470 21 2 A=1a20 B=755-.J056 C=1B20 017 016 1 20 20 1910 21 2 A=191 B=39B C=191 026 016 1 6 6 3460 99 2 A=114 B=B44->1104 C=1165 043 020 1 20 20 7630 99 1 A=1024 8=2823 C=2823 0=1024 , /o MEAN MEAN 0:1=67° o:1=108" o:2=1"a3=108' PHllO on• imw• "'" ~"" GnE -- d008 016 1 6 6 2755 99 2 A=190 B=159-•170 C=1810 ~ 018 016 1 5 5 3530 25 2 A=183 B=183 C=114 0=114 E=2101-•1926 ~ 027 016 1 6 6 5580 21 2 A=1815 B=1111-•2031 [=1815 044 012 1 120 120 2050 99 1 A=530 B=149 C=1434 fl_~ MEAN <>1=89" MEAN MEAN <>1=91' <>2=90" ,____. PHllO OnE lmw• "'" ~"" OnE -- ~"" OnE -- d009 016 1 6 6 4800 99 1 A=188 B=2230-•Z292 C=1820 ~ 019 016 1 9 9 4695 25 2 ~ 028 016 1 12 12 4855 21 2 A=18ZO B=1439-•1131 C=18ZO 045 012 1 80 80 3850 15 1 A=2153 8=581 [=1103 ~MEAN 0:1=12" MEAN MEAN PHllO one lmw• "'" d ~"" on• -- ~"" on• -- d010 016 1 6 6 6620 21 2 A=1820 B=3056 C=1820 A=185-•799 B=7BS-•799 [=779-•79l 0=719-•193 029 016 1 12 12 4855 21 2 A=1B20 B=1131-·1439 C=1820 046 016 1 2 2 3850 15 1 A=2153 B=587 C=1103 ~=3169-·3170 MEAN ~"" GnE -- d011 016 1 12 12 2790 99 2 A=783 B=188-•308 C=18ZO ~ 020 016 1 8 8 3005 99 2 A=191 B=496-•545 C=1766 rid 030 016 1 2 2 4630 21 2 A=922 B=286Z C=922 047 016 1 2 2 3860 15 1 A=229Z B=625 [=1569 ~MEAN o:1=BD" MEAN <>1=95" <>2=90° PHllO OnE lmw• "'" ~"" OnE --012 016 1 10 10 2970 99 1 A='J89 B=l07->55J C=1BZO ~ 021 016 1 8 8 3105 99 1 A=193 8=508-·611 C=1190 ~ 031 016 1 1 1 4880 DO A=4B'J9 048 012 1 120 120 1350 15 0 A=693 B=397 C=O'J3 ~MEAN a1=88" MEAN <>1=17° r1=550 PHllO one lmw• "'" ~"" on• --..,,,,._..,_ ,,,.,.._..,_ lrlll£M9 -111'- lrlll£M9 - "'- ~ ' CLIENT: II PROJECT IMPLEMENTATION CONSULTANT FILENMIEI TtN BAN v£ : sr.ALEIrt L(: : STATUSTlNHT~: PRO.ECTIDl/ #.! : HANOI PILOT LIGHT METRO LINE Sectkln NOOn - HlllOI Ralway station ~ I CHOEl.Wnr: Tl/ VAA THVC Hll;N DIJ AN PIC-TEC-ORR-WVQ.JIM-1MlllMl_JIA.DWa - Technical Design TU1N WONG sATBO rn1 rnlDlt::M TP HA NOi E>olil1 Nh&i- Ge Hill NOi ~ ~ ~ SYSTRAS.A DESIGNED BYITlll£'rKE: : FORtMTIKHO eANv£ : DATEINGAY: Tm.EITtN BAN v£ : ~ HRB NHUE RIVER CROSSING '~ A.K A1 31/01110 Vl1QT SONG NHUo7 ~§ "' "'"'11 2nd submission of lechnlcaldes91 H 3.Maurls ·"""'"" !!s 1C ....10 UM•'"' H IG. Maurts ·"""'"" CIECKED BYsoAT: Thladr-ingrnJlllnolba-IDar-.d,coplacl<r-rapmcilcad DECK- PS1-PS2 - REINF - BAR LIST-1I3HANOI METROPOUTAN RAIL TRANSPORT PROJECT BOARD q 1B ,...,, UPDATE> ~· jG. Maurie "·"""'"" G. Mauris i1 whole ar in part <r used far any prl4)Ca wihoU; lh8 priorwrillBn BAN ~TcAU- PS1-PS2-C0TTH~P- DANH Ml,ICTI-tANH-1 / ~ 1A 31/01/10 Fi18118a111 ~· 3.Mauris ·"""'"" BAN OiiAN DUONG BAT 001111 HA N()I permissiondHRB. ! • ""'"" -· PROJECTDIRECTORI GIAMe0c IX/AN : CHIEFDESIGNERIa-io tt11eM Tiii~ KE: : Bin ve nQ" khOng auqc ph6p ar. d1o11g dllCI mQI hlrll tll)c, ml)I phln hay DRA'MNGNO.IBAN v£: SO : I2A~ B REVISION OATE DESCRIPTION ClilEFOFDl!O IDAn bl), mil khOng o!uqc •II' oD!g ~ ~IAln bin all. HRB. PIC-TEC-GRR-WVO-J04-18585-B "''"' "'" NQI DUNG SO'A 001 THl~ICE "" Cl(JNIGlllETE Alain Bllchereau P.Amaud
  • 125.
    Bir TIP' No..t Tot~ Shapo llllld Bar TIP' No. ~~T~ ....llllld Bar TIP' No. ~~Tot~ ....llllld Bar TIP' No. ~= Tot~ lhapo llllld .... and at :.:. No. Llngth Cade TIP' _,. Shape Ru. ..to ;nl of No. F•"' Cade TIP' m...... 5hape Rew. .... ;nl of No. F•"' Cade TIP' -.... Shape Rew. ..ri. and of No. Llngth Cade TIP' - 5hape Ru. size ,_ size ,_ - size ,_ - size -mm mm mm - mm mm mm - mm mm mm - mm mm mm - i6=i ~ E l049 016 1 40 40 3710 00 A=3709 059 08 1 200 200 630 99 1 A=129 B=400 068 08 1 24 24 1780 99 2 A=399->449 B=351 [=325 081 016 1 12 12 910 99 1 A=548 MEAN '"'"'IGTIE ~· "'" 1bd~ ' " E l050 020 1 20 20 9150 25 1 A=2142 B=2142 C=285 D=285 E=4870 060 016 1 28 28 8960 99 2 . c 011 016 1 24 24 1820 99 2 A=560 B=260 082 016 1 24 24 810 99 1 A=457 " 051 020 1 20 20 6680 25 1 A=664 B=664 [=417 D=41'J E=5l68 ~ A=147 B=4004 [=506 D=l'l27 E=SOJ F=147 072 016 1 8 8 1100 21 2 A=490 B=20l C=48l y 083 016 1 4 4 1450 21 2 A=550 B=421 C=550 ciJa1=135' a2=10B" cd=7Z" o:4=7Z" a5=135" 052 020 1 10 10 6160 99 1 A=584 B=5059 [=584 fJd1 061 014 1 40 40 5180 25 1 A=603 B=60l C=575 D=515 E=40J9-•l955~ 075 016 1 12 12 3420 99 2 ob~ 084 016 1 2 2 1540 21 2 A=SSO B=510 [=550 ciJa1=10B" a2=10B" MEAN " '"'"'ioTIE ~· "'" " 053 016 1 40 40 4750 99 1 A=217 B=266 C=3691 D=l14 E=516 '' 062 014 1 40 40 4965 25 1 A=603 B=603 C=515 D=515 E=3BBJ-,J720 ~ A=14'l B=10'J2 C=205 D=l50 E=940 F=127 G=5l0 H=147 C11=125° C12=55° Ci3=56° 0:4=71° MEAN a1=135° a2=B1" al=1B" a4=B2" a5=B" a6=B2" a7=1l5" '"=""'~· "'" ' 054 010 1 80 80 1350 13 1 A=1215 E I 063 010 1 80 80 1630 15 1 A=113 B=l45 [=1461 ~ 076 016 1 12 12 3540 99 2 'o''° eo"% Com HO Co%1 mo Co1'° 00 ° a1=135" a2=81° 0:3=82° 0:4=18° 0:5=90° 0:6=135° 055 025 1 120 120 3255 99 2 A=405 B=270 [=1155-•3121 EbJ1 064 DB 1 4 4 1130 99 2 A=98 B=l51 [=325 ~ 017 016 1 4 4 1500 99 2 A=505 B=549 [=504 fboMEAN a1=103"a2=85" PHllCJ GTll;: """' "'" L.=J ~ fJd1056 016 1 70 70 1550 99 2 A=1B0-·1142 065 08 1 8 8 1140 99 2 A=101 B=351 [=325 018 016 1 4 4 1320 99 2 A=506 B=3'l2 C=50B MEAN <>1=91°0:2=99° PHllCJ GTll;: ~· "" • n Q057 025 1 40 40 7660 99 2 A=255 B=l93 [=J2J9 D=l81 E=3150 F=155 f: 066 08 1 8 8 1160 99 2 A=86 B=l51 [=140 D=315 079 016 1 12 12 1980 99 2 A=450 B=450 a1=ns• a2=11• al=108" a4=11• a5=1l5" ".058 025 1 80 80 7400 99 2 1· 061 010 1 8 8 1800 99 2 A=443 B=446 [=282 ~ 080 016 1 4 4 1300 99 2 A=481 B=391 [=485 fJd1MEAN a1=97"a2=103" PHllCJ GTll;: ~· "'" " A=255 B=l93 C=29B0-·3139 D=381 E=2991-·315D f=155 a1=1l5° a2=11" a3=108° a4=12" a5=1l5° __..,_ ___..,_ --1111'- --1111'- ~ ' CLIENT: II PROJECT IMPLEMENTATION CONSULTANT FILE NMIE ITtN BAN v£ : sr.ALE Irt L(: : STATUSTlNHT~: PRO.ECTIDlf AN : HANOI PILOT LIGHT METRO LINE Sectkln NOOn - HlllOI Ralway station ~ I CHOEl.Wnr: Tl1 VAA THVC Hll;N DIJ AN PIC-TEC-ORR-WVQ.JIM-1MIB8_2".DWa - Technical Design TU1N WONG sATBO rn1 rnlDlt::M TP HA NOi E>olil1 Nh&i- Ge Hill NOi ~ ~ ~ SYSTRAS.A DESIGNED BYITlll£'rKE: : FORtMTIKHO eANv£ : DATEINGAY: Tm.EITtN BAN v£ : ~ HRB NHUE RIVER CROSSING '~ A.K A1 31/01110 lll1Q'T SONG NHUo7 ~§ "' "'"'11 2nd submission of lechnlcaldes91 H 3.Maurls ·""""" !!s 1C ....10 UM•1"d H IG. Maurts ·""""" CIECKED BYsoAT: Thladr..ingrnJlllnolba-IDar-.d,coplacl<r-rapmcilclld DECK- PS1-PS2 - REINF - BAR LIST-2 I 3HANOI METROPOUTAN RAIL TRANSPORT PROJECT BOARD q 1B ,...,, UPDATE> ~· jG. Maurie '"""""" G. Mauris i1 whole ar in part <r used fOr any prl4)Ca wihoU; lh8 priarwrillBn BAN ~TcAU- PS1-PS2-C0TTH~P- DANH Ml,ICTI-tANH-2/ ~ 1A 31/01/10 Fi18118a111 ~· 3.Mauris ·""""" BAN OiiAN DUONG sAT00 1111 HA N()I permissiondHRB. ! • ""'"" """" PROJECT DIRECTORIGIAM e0c IX/AN : CHIEFDESIGNERIa-io tt11eM Tii1£T KE: : Bin ve nQ" khOng auqc ph6p ar. d1o11g dllCI mQI hlrll tll)c, ml)I phln hay DRA'MNG NO. IBAN v£: SO : I2A~ B REVISION ""' DESCRIPTION ClilEFOFDl!O IDAn bl), mil khOng o!uqc •II' .Dig~ ~IAln bin all. HRB. PIC-TEC-GRR-WVO-J04-18586-BS(IAOO """ NQI DUNG SO'A 001 THl~ICE "" Cl(JNIGlllETE Alain Bllchereau P.Amaud
  • 126.
    r r Total Lengthsand Weights Number of members 1 Type T Type R BENDING DIAMETERS !mm) Lengths of standard hooks (mm) Total Weight- Total Total Weight- Total Diameters 6 8 10 12 14 16 18 20 22 25 28 Diameter Lengt-h per unit Weight Length per unit Weight Hooks Diameters I 6 I 8 10 12114116 18 20 22 I 25 lml (kg/ml lkgl lml (kg/ml lk gl !Type 11 36 48 60 72 84 96 108 120 132 150 224 6 0 0.222 0.00 D Frames 24 32 40 48 56 64 108 120 132 150 224 8 192 0.395 75.70 IT••e 21 nchorage 30072 96 120 144 168 192 216 240 264Hooks 0 0 0 0 0 0 0 0 0 0 0 D !Type 11 10 253 0.617 155.98 IType 11 ll Frames 12 3125 0.888 2774.61 R Frames IT••e 21 0 0 0 0 0 0 0 0 0 0 0 0 0 0 0 0 0 0 0 0 0 14 406 1.210 491.02 )Type21 nchora%e 96 144 192 300IType 72 120 168 216 240 264 16 3194 1.580 5046.19 R Frames 18 402 2.000 804.00 BAR DIMENSIONS IT••e 21 0 0 0 0 0 0 0 0 0 0 20 531 2.470 1311.08 - THE DIMENSIONS ARE GIVEN ON THE OUTSIDE FIBER OF THE REBAR )SEE BELOW) 22 0 2.980 0.00 - THE TOTAL LENGTHS ARE CALCULATED ON THE BASIS OF THE CENTERLINE. nchora%e 25 1289 3.850 4962.65 )ISO 3766,2004 - METHOD Bl !Type 1 36 48 60 72 84 96 108 120 132 150 28 0 4.830 0.00 - THE BENDING ANGLES ARE GIVEN IN DEGREES. ff D Frames ITvne 2) 0 0 0 0 0 0 0 0 0 0 32 0 6.310 0.00 4 E nchora%e 36 0 7.990 0.00 !Type 1 36 48 60 72 84 96 108 120 132 150 R Frames40 0 9.860 0.00 0 0 0 0 0 0 0 0 0 0ITvne 2) Type T Type R nchora%e Total Length - Bended. 6824 ,!f- !Type 1 65 65 65 65 65 65 72 80 88 100 Total Length - St-raight- D Frames2567 " 0 0 0 0 0 0 0 0 0 0ITvne 2) Tot.ii Length Im) 9390 nchora%e Total Weight - Bended: 13233 !Type 1 65 65 65 65 65 65 72 80 88 100 R Total Weight - Straight 2389 Frames 0 0 0 0 0 0 0 0 0 0 Tot.ii Weight lkg) · 15621 ll""I!! 2) Mean Size lmml GENERAL WEIGHT kg - I 16.4 I I 15621 I c .Acm•(AD• OTP ---llP- - _..,_ ~ ' CLIENT: II PROJECT IMPLEMENTATION CONSULTANT FILENMIEITtN BAN v£ : sr.ALEIrtLe: STATUSTlNHT~: PRO.ECTIDlf AN : HANOI PILOT LIGHT METRO LINE Sectkln NOOn - HlllOI Ralway station ~ I CHOEl.Wnr: Tl1 VAA THVC Hll;N DIJ AN PIC-TEC-ORR-WVQ.JIM-1Mll7-8_2".DWa - Technical Design TU1N WONG sATBO rn1 rnlDlt::M TP HA NOi E>olil1 Nh&i- Ge Hill NOi ~ ~ ~ SYSTRAS.A DESIGNED BYITlll£'rKE: : FORtMTIKHO eANv£ : DATEINGAY: Tm.EITtN BAN v£ : ~ HRB NHUE RIVER CROSSING '~ A.K A1 31/01110 lll1QT SONG NHUo7 ~§ "' "'"'11 2nd submission of lechnlcaldes91 H 3.Maurls ..-... !!s 1C ....10 UM•'"' H IG. Maurta ..-... CIECKED BYsoAT: Thlad-ngrnJlllnolba-IDal-.d,coplaclor-rapmcilcad DECK- PS1-PS2 - REINF - BAR LIST-3 I 3HANOI METROPOUTAN RAIL TRANSPORT PROJECT BOARD q 1B ,...,, UPDATE> ~· jG. Mauria "·""""' G. Mauris i1 whole ar in part or used for any prl4)Ca wihoU; lh8 priorwrillBn BAN ~TcAU- PS1-PS2-C0TTH~P- DANH Ml,ICTI-tANH-3/ ~ 1A 31/01/10 Fi181 l8al8 ~· 3.Mauria ..-... BAN OiiAN DUONG sAT00 1111 HA N()I permissiondHRB. ! • ""'"" -· PROJECTDIRECTORIGIAMe0c IX/AN : CHIEFDESIGNERIa-io tt11eM Tii1£T KE: : Bin ve nQ" khOng auqc ph6p ar. d1o11g dllCI mQI hlrll tll)c, ml)I phln hay DRA'MNGNO.IBAN v£ SO : I2A~ B REVISION "" DESCRIPTION ClilEFOFDl!O IDAn bl), mil khOng o!uqc •II' .Dig~ ~IAln bin all. HRB. PIC-TEC-GRR-WVO-J04-18587-B "''"' "" NQI DUNG SO'A 001 THl~ICE "" Cl(JNIGlllETE Alain Bllchereau P.Amaud
  • 127.
    08 "'N D @// "'N D -9 N Ci I I I II f I I l I 1 I 1 I I I I I I I l I I I I ' I I I I I I L - - I L _ _ _ _ _ ~ - - - - - - --~ N D N D N D N 0 039 038 037 036 034 r--7 ~~ - - r--7 ..; 15 ~ I ... _, ~ D 07 075 Li I I I I 1 ' 1 1 [Tc . - . - --' I ' I I I I I I I I 1· I • 1 _L_L .I :_i __L .I I , L:__ I _ l_ _J N Ci _, Ci 108 c = 078 076 LJ I I I I _ _ L..__ _ _ · - . N N 0 0 N 103 Ci ----= 033 - NOTES: ---------------------~ GHI CHL.f: 1. REINFORCEMENT YIELD STRENGTH: FY=420 MPA. 1. ClldNG El0 CHAY CllA cx:fTTHE'.P :fy--420 Mpa 2. CONCRETE COVER: C=50 MM. 2. Ld P eeTONG e.<o v£c=50 mm 3. FOR PARAPET S"fARTER BARS REFER TO DWG. NO. 3. EE. XEM THANH COT THeP CHO'GOA LAN CAN XJNXEM BAN ve so PIC-TEC-GRR-WVO-J00-18803-B TO PIC-TEC-GRR-WVO-J00-18808-B IL--L---_-_-_-L---_-_-_-_-L----_-_-_-_-_-_-_-_-_-_-_-_-_-_-_-_-_-_-_-_-_-_-_-_-_-_-_-_-_-_...~---_-_-_-_-_-_......,-_-_-_-_-_..,+---_-_-_-_-_:.--a.-rENT-:----------------,--=,=~=1==---P-ROJ-ECT-IM_PL_EM_E_N-TA_T_ION_CO_N_s_u_LT-ANT-----,r.Fl:-;LE:-::NAA1=E:;'.lTt:::::-NBAN=::;v£:-:----1.SCALE=.:-:,-;;!Y;;-u;;:".::-------,~SI;;A:::;:ru;;;s;;-1-;;T1N:;;:H;-;1RAN;;;_::;G;;".::--'i....l'.'PROJ~ECT~;;;;;llV;;;;;AN'.""":~:::HAN0::7:::::'.1P:l:-:LO::T7L:IG::'.HT::'::MET=RO::-:U:::N:-E-:Sedian::--.:.~N::"hon'""".-Ha~na':'..Ra::::'it.oiy""'"'.S1atial:::.:--~1...j '' ~ L---'-----'------------------1-----+----+------I CHOflAu T1: T1 VAN THI,IC HreN DI,/AN PIC-TCC<;R""""""4-1""""Ll'>DWG - Teclmical Design TIJY£NellONGs>.rEJOTHITHIe1eMTPHANQI BatnN~n .Ga Hi NOi ~ 115 I 3" 2111 1r1 1 Updatlld A.K G. Mourio l, Joing • SYSTRAS.A DESIGNEDBYTHli;rK£ : FORMATKHOBANVE: DAlENGAY: Tm.ETtNBANVE: NHUE RIVER CROSSING 1I .'!E 2A 30KM/11 2nd•ubmll1lonoflllchnlcaldaolgn A.K G.Mourto P.Amaud HRB A. K A1 31/01/10 VU'QTSONGNHUI;: i lS 10 D1111r!D Updatad A.K " · Mourto 0 . Arnaud ~~ 1C :81B/1D Updatad A.K " . Mourto 0 . Amaud CHECKED BYSlll.T: Thil-gmu1tnotbo1-1...ec1,_«___ DECK-ES1-ES2-REINF-1/5 ~ ~ L-~1e~.c2Ml:=&11:..:::.D....1..~uPO>;=:JED::...._____________~A:;,.K::.....--i::G;.:. Mou=rto=-.J..,.:..:_Amau==d:........i HANOI METROPOLITAN RAIL TRANSPORT PROJECT BOARD G. Maur1s ::,::::;:~,;,'."u1ec1<oro,...""'_""""""..........- BAN ~T cAU - ES1-ES2. COT THi:P - 1 / 5 ~ I ~ 1A 3 1 m 111 ° Firot 11aJa A.K G. Mourto P. Amaud BAN DlfAN allONG sA.TllOTHI llANQI PROJECTDIRECTOR GIAMaOC01,1AN: CHIEF~IGNERCll)NHleMTH1£rKe: ..,,..n0y_....,._.,...,ng....,..,.•.,,._"""iHni.v DRAl'l1NGNO. eANV£sO: I ti ~ ~ ~:g,N ~ NQloi:;:~~fJOI :':Bl' :;®Bl' g:;Oli~~!t Alain B~cheraau P. Amaud .,..~... -....,..,~t~..,,..,,..."""· PIC-TEC-GRR-WVO-J04-18590-B 3A...
  • 128.
    ~ ~ i I!! ~ t ui w.!: F % !I $i !;l 8 ~ uii: B @ 15 E ~1''D~ E('· [] ~ - - - ;; 14 14 020 '6 0 ~ ~ I ~ ~ ~ D DI .---------- 020 1 -" _. -" t --(§) -(§ 020 II. Ib::o: I '= I= 016 @) [1 '-!J '= I= ~6x4-D16 F' =,__ ,____ r ~ ~ ,_____ '--- 8 01[ '= I= I---- ,_____ ~ '-- '= I= h. io; 'Si ,_____ ,_____ 014 ,_____ §) D10 ,__ r ~ ~ i --r: ·016 -@) 211"'"1--~120 201 1218 0 15 8 14 14 l ~ '-~-- '-'- ;;I 4 s--LONGITUDINAL BAR THANH COT ™i;p DOC -s ""0 ~ @ SECTION 1-1 MAT CAT 1-1 SCALE: 1120 T'l' Lfi':1/20 1 r::;-::;.., LONG.BAR - ~HCOT™ePDO SECTION A-A MAT CATA-A SCALE: 1/20 Ti'Ll;:1120 o-----+-----+----------------------------_._------......_----..._--___. Q.IENT: o-----+-----+----------------------------_._------......_----..._--___. CHOflAuru: 3" 21111r11 Updatlld A.K 2A 30KM/11 2nd •ubmll1lon oflllchnlcal daolgn A.K 10 D1111r!D Updatad A .K HRB 1C ~B/1D A .K ,______ ,_ - I ~1 • ~ 001 ~ cI CD ~ LillL@--- I 016 8 -- D25 8 # 025 8 # D14 @)L__J~ ~ cI "" 4 D 4 €Y-- 03 PROJECT IMPLEMENTATION CONSULTANT 11 VAN THl,IC HleN DI,/ AN FILE NAA1ElTtN e,1,1/£: SYSTRAS.A DESIGNED BYTHli;rK£ : A. K CHECKED BYSlll.T:Updatad 18 2Ml&'ID UPDATED A .K G. Maur1s HANOI METROPOLITAN RAIL TRANSPORT PROJECT BOARD 1A 31m1/1D Fl..tlla» A .K1-----+-----+-----------------------------4------------1--------l BAN DI/AN llWNG sA.ra0 THI HA NQI REVISION DATE SLrAOOI Nal.Y DESCRIPTION NQI DUNGsLrAfJOI IHIHl!BI' HIM! CllllClllBI' IOI.! PROJECTDIRECTORGIAMaocDI/AN: CHIEF~IGNERCll) NHleMTH1£r Ke: Alain B~cheraau P. Amaud SECTION 2-2 MAT CAT2-2 SCALE: 1/20 SCALE TYLE: FORMATKHO BAN VE: A1 STAlUS TfNH~G : Teclmical Design DATENGAY: 31/01/10 Thil <Rwi'ID mUll:notbe eithlrlOlrled,<q>ied«otl'lll'Wile NP'Odiacl ln wtdeah P11rtorul8dfor•nr prupmewllhoul:.. prlor'Mltsl parmlllllonot HRB. ......My_..,.,._.......ng ..... ..,.. .... _rn(llpMnt.y ....~ ...- .........~t~'"""'""'""""- SECTION 3-3 MATCAT3-3 SCALE: 1/20 TY Ll;:1/20 11 Q NOTES: ~~~~~~~~~~~~~~~~~~~~~ GHI CHL.f: 1. REINFORCEMENT YIELD STRENGTH: FY=420 MPA. 1. ClldNG El0 CHAY CllA cx:fTTHE'.P :fy-----420 Mpa 2. CONCRETE COVER: C=50 MM. 2. Ld P eeTONG e.<ov£c=50 mm 3. FOR PARAPET S"fARTER BARS REFER TO DWG. NO. 3. Ee XEM THANH COT THe!P CHO'GOA LAN CAN XJN XEM BAN ve so PIC-TEC-GRR-WVO-J00-18803-B TO PIC-TEC-GRR-WVO-J00-18808-B PROJECT CVAN: HANOI PILOTLIGHT METRO LINE SediDn Nhon•HantiRailway S1atial TIJY£NflOONG sATEJ0THITHIfll~M TPHA NQI BatnN~n · Ga Hi NOi Tm.ETtNB,l,IVE: NHUE RIVER CROSSING VU'QT SONG NHUI;: DECK- ES1-ES2 - REINF - 2 / 5 BAN ~T cAU - ES1-ES2 ·COT THi:P - 2 / 5 DRAl'l1NGNO. BANV£SO: PIC-TEC-GRR-WVO-J04-18591-B 3A
  • 129.
    ~ ~ i I!! ~ t ui w.!: F % !I $i !;l 8 ~ uii: B 3" 21111r11 Updatlld 2A 30KM/11 2nd 1ubmll1lon oflllchnlcal daolgn 10 D1111r!D Updatad 1C ~B/1D Updatad :1 ® -- LONGITUDINAL BAR THANH OOT THEP DOC ®LONGITUDINAL BAR THANH COT THEP DOC A.K A. K A . K A . K I n 0fo42> 2x23 -D2S UvcY @is o .Amoud .Amoud 15 0 814 14 ~ " HRB c; II II 11 AK ·11 II ""' II II ~1 <)/§)LONG. BAR 1 THANH COT THEP DOC - SECTION B-B MAT CAT B-B •SCALE : 1/20 TI'Le:1/20 n - 9 @ ~ = - en o- ~ @, Q <)~ LONG.BAR - THANH COT THEP DOC - SECTION C-C MATCATC-C • SCALE : 1/20 ri' LS:1/20 n ~ .....08 ·-<;::• .... PROJECT IMPLEMENTATION CONSULTANT Tl1 VAN THl,IC HleNDI,/ AN SYSTRAS.A 18 2Ml&'ID UPDATED A . K 1A 31m1/1D Flrotlla» A . K .Amoud HANOI METROPOLITAN RAIL TRANSPORT PROJECT BOARD t--+=:-::--+-=-:-:---------------+;;.;.;...--.i::;..;=~i-:_.:..:Amou::=d:.......i BAN DlfAN llWNG sA.rllOTHI llANQI PROJECTDIRECTORIGIAMaocDI/AN: REVISION DATE DESCRIPTION IHIHl!BI' Sll'AOOI Nal.Y NQI DUNGWAfJOI HIM! CllllClllBI' l>&IHlllill IOI.! otl1t11;M1111!rl! Alain B~cheraau ((£ H @) er ..,o $!~ ~iiCi~ ,& ,.,,., .....N ... FILE NAA1ElTtN e,l,i/£: DESIGNED BY TH1£TK£ : A. K CHECKED BYSlll.T: G. Maur1s ,c:--- 'll I ., I - n =N N c; 8 '0 @) --= N= "' ... @-en Co o - 0 ·-<;::&,,:, @, ....";; N D12 C';:.. / " ~ ~/ SCALEITYLE: FORMATKHO BAN VE: A1 STAlUS TfNH~G : Teclmical Design DATEINGAY: 31/01/10 Thil <Rwi'IDmUll:notbe eithlrlOlrled,<q>ied« otl'lll'Wile NP'Odiacl ln wtdea h P11rtor ul8dfor •nr prupmewllhoul:.. prlor'Mltsl parmlllllonot HRB. NOTES: ~~~~~~~~~~~~~~~~~~~~~­ GHI CHL.f: 1. REINFORCEMENT YIELD STRENGTH: FY=420 MPA. 1. ClldNG El0 CHAY CllA cx:fTTHE'.P :fy---420 Mpa 2. CONCRETE COVER: C=50 MM. 2. Ld P BE TONG e.<ov£c=50 mm 3. FOR PARAPET S"fARTER BARS REFER TO DWG. NO. 3. ElE XEM THANHCOT THe!P CHO' COA LAN CAN XJN XEM BANV£SO PIC-TEC-GRR-WVO-J00-18803-B TO PIC-TEC-GRR-WVO-J00-18808-B PROJECTIDVAN: HANOI PILOTLIGHT METRO LINE SediDn Nhon•HantiRailwayS1atiCln TIJY£NflOONG sAr EJ0THITHIfll~M TPHA NQI Batn N~n. GaHi NOi Tm.E TtNB,l,iVE: NHUE RIVER CROSSING VU'QT SONG NHUI;: DECK- ES1-ES2 - REINF - 3 / 5 BAN ~T cAU • ES1·ES2 · COT THi:P • 3 / 5 CHIEF~IGNERCll) NHleMTH1£rK£: ......My_..,.,._.......ng ..... ..,.. .... _ rn(llpMno.y .... ~ ... - ......... ~t~YGnb6n cOo HRB. DRAl'l1NG NO.IBANVESO: P. Amaud PIC-TEC-GRR-WVO-J04-18592-B 3A
  • 130.
    ~ ~ it i ~ii: 4 N o 8---LONGITIJDINAL BAR THANH COTTHr:P DOC #@ D2S ~ 8--"-"'----+lm.- c:;:;., LONG.BAR ~ THANH COT THeP DOC ~ MILD STEEL BARS R10 '.J cAC THANH COTli:i.iii:P NON R10 n ~~ 8 D SECTION D-D MAI£~~g-o 'TYL1~:1120 n 8 1@ @ C> "'o ;::; MILD STEEL BARS R10 ~ cAC THANH COT THr:P NON R10 ~ - 1 0n 8 !!!~ 9911!. N ...N ro o " D N 012 Qr-~~/ L__ 101 c:;:;....- 102 --= @ ---= ~~~~~~~~~~!~n~~~~~~~~~;~~~~·~~~~~~;~~~~~~~~~~~~r 1: :1 s--LONGITIJDINAL BAR THANH COT THeP DOC SECTION E-E MAT CAT E-E • SCALE: 1120 TYLl1.:1/20 ~ @ ,@ DETAIL OF BEARING CHI Tl~T COA GCI SCALE: 1/20 TYLIS:1/20 ,@ ,@ I!! ~ uw .!: F % !I $1 !;l 8 uB I cAc Tl!ANH COT THr:P NON R10 cBAR SKETCH 15 Br---'"R~10""+-_--tt__1 SO' HOA Tl!ANH COTTHeP 'R10 EPOXY BONDING COMPOUND TO 157 HON H P NOi GHeP EPOXYElU' AP D NG BE APPLIED JUST BEFORE CONCRETING TROOC KHI 00 er: TONG I RECESS R/F BEFORE UNFOLDING HCC NEO R/F TRU'CYC KHI MO' RECESS R/F AFTER UNFOLDING HCC NEO R/F SAU KHI MO' SCALE: 1/20 TYLl1.:1/20 t----+----+-------------_.____..._______, Q.IENT: t----+----+-------------_.____..._______, CHOflAuru: 3" 21111r11 Updatlld A.K 2A 30KM/11 2nd •ubmll1lon oflllchnlcal daolgn A.K 10 D1111r!D Updatad A . K 1C ~B/1D A . K HRB Updatad 18 2Ml&'"ID UPDATED A . K HANOI METROPOLITAN RAIL TRANSPORT PROJECT BOARD 1A 31m1/1D Flrotlla» A . K t----+----+---------------4----t----4----+ BAN DI/AN llWNG IA.TllOTHI llANQI REVISION DATE SLrAOOI Nal.Y DESCRIPTION NQI DUNGWAfJOI IHIHl!BI' HIM! CllllClllBI' IOI.! • SCALE: 1/20 TYLl;:1/20 PROJECT IMPLEMENTATION CONSULTANT 11 VAN THl,IC HleN DI,/ AN SYSTRAS.A PROJECTDIRECTORGIAMaocDI/AN: Alain B~cheraau FILE NAA1ElTtN e,l,i/£: DESIGNED BYTH1£TK£: A. K CHECKED BYSlll.T: G. Maur1s CHIEF ~IGNERCll) NHleMTH1£rK£: P. Amaud SCALE TYLE: FORMATKHO BAN VE: A1 STAlUS TfNH~G : Teclmical Design DATENGAY: 31/01/10 Thil <Rwi'ID mUll:notbe eithlrlOlrled,<q>ied«otl'lll'Wile NP'Odiacl ln wtdeah P11rtorul8dfor•nr prupmewllhoul:.. prlor'Mltsl parmlllllonot HRB. ......My_..,.,._.......ng ..... ..,.. .... _rn(llpMnhly .... ~ ... - ......... ~t~Y<nb6ncOoHRB. PLAN VIEW 5-5 MAT BANG 5-5 SCALE: 1/20 TY LIS:1120 NOTES: ~------------------~ GHI CHL.f: 1. REINFORCEMENT YIELD STRENGTH: FY=420 MPA. 1. ClldNG El0 CHAY CllA cx:fTTHE'.P :fy--420 Mpa 2. CONCRETE COVER: C=50 MM. 2. Ld P ee TONG e.<o v£c=50 mm 3. FOR PARAPET S"fARTER BARS REFER TO DWG. NO. 3. ElE. XEM THANH COT THe!P CHO' COA LAN CAN XJN XEM BAN 111:SO PIC-TEC-GRR-WVO-J00-18803-B TO PIC-TEC-GRR-WVO-J00-18808-B PROJECT CVAN: HANOI PILOTLIGHT METRO LINE SediDn Nhon•HantiRailway S1atial TIM:NflOONG sATElOTHITHIfll~M TPHA NQI ElatnN~n · Ga Hi NOi Tm.ETtNB,l,iVE: NHUE RIVER CROSSING VU'QT SONG NHUI;: DECK- ES1-ES2- REINF -4 / 5 BAN ~T cAU - ES1-ES2 ·COT THi:P - 4 / 5 DRAl'l1NGNO. BANV£SO: PIC-TEC-GRR-WVO-J04-18593-B 3A
  • 131.
    ~ ~ i I!! ~ t ui w.!: F % !I $i !;l 8 ~ uii: B S LONG.BAR THANH COT THEP DQC LONG.BAR ™ANH COT nu~.P DOC ___ ~ 2x6-D18 ~ (9150 ___ @---'0"'"14;;;......__,._ &-- LONG.BAR @ Q THANH c0T THi;P DQC ~ 11 I- - - - 1 1 __J @ ~~0=8- @l !" SECTION F-F MAT CAT F-F • SCALE : 1/20 TYLl;::1/20 -8 016 ~@-- ®- 012 @ ==::J 014 @)__J ~ @) c:::= 012 @==::J ~ ----7 016 @-- --e - ·- ·- ·-· $-· $PLANVIEW.6-6 ·- ·- . 5 MAT BANG 6-6 • SCALE: 1/20 TY Ll;::1/20 o----+---+---------------_.____......__ __......__ __. Q.IENT: •PROJECT IMPLEMENTATION CONSULTANT Tl1 VAN lHl,IC HleN DI,/ ANo----+---+---------------_.____......__ __......__ __. CHOflAunr: 3" 21111r11 Updatlld A.K 2A 30KM/11 2nd •ubmll1lon oflllchnlcal daolgn A.K 10 D1111r!D Updatad A . K HRB 1C ~B/1D Updatad A . K HANOI METROPOLITAN RAIL TRANSPORT PROJECT BOARD18 2Ml&'ID UPDATED A . K 1A 31m1/1D Flrotlla» A . K1----+---+---------------_._--------11-------l BAN DI/AN llWNG IA.TllOTHI llANQI REVISION DATE SLrAOOI Nal.Y DESCRIPTION NQI DUNGWAfJOI IHIHl!BI HIM! CllllClllBI IOI.! SYSTRAS.A PROJECTDIRECTORIGIAMaocDI/AN: Alain B~cheraau -- @) ~"------, --@ FILE NAA1ElTtNBAN/£: DESIGNED BYTHli;rK£ : A. K CHECKED BYSlll.T: G. Maur1s CHIEF~IGNERCll) NHleMlll1£rKe: P. Amaud "'Ci SCALE TYLE: FORMATKHO BAN VE: A1 l--+l->-4+--++--4+-41--+i--+1--+1-~++--4+-41--+l--+l--+I-~~"'-- 8 I/ ----++-~1---4-----1+----<+-++-~l+----+l----++----l+------l+----U---++-----+e-++----l+-+--'~ €9 /J !::! 9 ,,~ Ll -4'" N - ;::! Cl Ci ~- @ Cl @ @> @~ @) @) @) -- __) ==::J ==::J @- STAlUS TfNH~G : Teclmical Design DAlEINGAY: 31/01/10 SECTION 5-5 MATCAT5-5 SCALE: 1/20 TY Ll;::1/20 NOTES: ~~~~~~~~~~~~~~~~~~~~~ GHI CHL.f: 1. REINFORCEMENT YIELD STRENGTH: FY=420 MPA. 1. ClldNG El0 CHAY CllA cx:fTTHE'.P :fy--420 Mpa 2. CONCRETE COVER: C=50 MM. 2. Ld P BE TONG e.<ov£c=50 mm 3. FOR PARAPET S"fARTER BARS REFER TO DWG. NO. 3. ElE XEM THANH COT THe!P CHO' COA LAN CAN XJN XEM BAN VE SO PIC-TEC-GRR-WVO-J00-18803-B TO PIC-TEC-GRR-WVO-J00-18808-B PROJECTDI,/AN: HANOIPILOTLIGHT METRO UNE Sedian Nhon•HantiRailway S1atiCln TIJY£N flOONG sATEJ0THITHIfll~M TP HANQI Elatn N~n · Ga Hi NOi Tm.E~NBAN1£ : NHUE RIVER CROSSING VU'QT SONG NHUI;: Thil <Rwi'ID mUll:notbe eithlrlOlrled,<q>ied«otl'lll'Wile NP'Odiacl ln wtdeah P11rtorul8dfor•nr prupmewllhoul:.. prlor'Mltsl parmlllllonot HRB. DECK- ES1-ES2 - REINF - 5 / 5 BAN ~T cAU - ES1-ES2 ·COT THi:P - 5 / 5 ......My_..,.,._.......ng ..... ..,.. .... _rn(llpMnt.y ....~ ...- .........~t~'"""'""'""""· DRAl'l1NGNO. BANV£SO: PIC-TEC-GRR-WVO-J04-18594-B 3A
  • 132.
    B.. TIJll No. ~= Tahl lengll~ BOid e.. TIJll No. ~'t. Tot~ lengll """' BOid e.. TJPI No. ~t. Tot;il lengll "1ope BOid e.. TIJll No. ~"~ Tahl Length ::BOid .... Old •f No. T1pe Dillensions Sh"' RH. .... Old ot ~... No. Cade TIJll - Sh'I' RH. .... Old ot ""' No. Cade TJPI - Sh'I' RH. .... Old If ~... N• TJPI - Shipe RH. ... -- ... .... - ... -- ... --- - - - ~ Gd E001 012 1 16B 16B 6900 00 ·- 014 016 1 24 24 1B20 11 2 Aa'IO 1-251 Ol3 012 1 64 64 2330 99 1 "9IW llal49 C•'llt34 043 010 1 46 46 1350 13 1 ..... I ........... ci1 • ' {J002 016 1 44 44 64BO 00 ...... 015 016 1 12 12 1B60 21 2 A-711 a.m c.m 034 020 1 9 9 7350 99 1 ~ a.ns CdlZJ .,..... .. ,. 044 025 1 16 16 5320 99 2 .WSS M95 c.t76T MM E-1'16'1 fwZ55 ...,....az.raJm•r DUS" 112a72" llJa... 114-'IZ" 115-'DS" 006 016 1 1B 1B 2B10 21 2 Ad'JI 1.aa-1511 Ca9'JI ci1 016 016 1 6 6 3150 21 2 Aa71JI llaWZ-MT c.m ci1 035 016 1 23 23 6270 15 1 AaJBi.Wl~ ~ 045 025 1 46 46 4925 99 2 '#.... """ """ ' 007 016 1 1B 1B 2B10 21 2 Ad'16 1.aa-1511 Ca9'JI ci1 011 016 1 6 6 3245 99 2 A-'115 a.Tl!iJ-'IJl!ii c-96Z ~ 036 020 1 9 9 1100 25 1 A"'8I "'611 C41 MT &5'18 ~ .wss a.os-mo CsTN'l-271 IM96-mz .... """ ...... "'176'1-293 f.255 ci1 OUS"cds72"113s'11"114a72".S-US-~ ... 016 1 6 6 2470 99 2 ....m •·• Cd'l6 ~ 018 016 1 4 4 2160 21 2 A-711 a.stt-'701 C.'IJI 037 020 1 9 9 9290 25 1 Aa& ... c.m D.J25 E.stn ~ 046 DB 1 1B4 1B4 730 99 1 Astn BJDS-715 ...,.. """ """ K 009 016 1 6 6 20BO 99 2 ....,,. ...., [at'J6 ~ 019 016 1 4 4 2280 99 2 Aa'll'J a.s.t-650 Cm96Z ~ OJI 020 1 1 1 65BO 25 1 "9445 M45 Wll D-1ID &5'10I ~ 047 014 1 1B 1B 6240 99 2 '·...,. """ ..... ~ 010 016 1 6 6 mo 21 2 A""'6 1•'151. C-916 ci1 020 016 1 32 32 2865 21 2 A-711 B-UI WJll-1112 y "' 020 1 B B 6960 99 1 A-144 B-5331 c.t44 li=:d1 A-129 a.26lt6 C.141 IWB EsZl63 M40 G.1Zt """ ........... oura2a39" aJaT' a.k1U" as-wG16sUS" 011 016 1 6 6 1940 99 2 A•m a.zu c.m ~ 021 016 1 32 32 2865 21 2 Aa71JI Mii c.2Jll-1112 y 040 012 1 46 46 4060 15 1 Aamt-92 a.sn-m c.•n-2D4 ~ 041 025 1 32 32 2540 99 2 A-'05 11.J'JO c.nn Qd1..... """ .... y ~ L.=J012 016 1 6 6 3630 21 2 Ad'lti 1451. c.'169 031 01B 1 1B 1B 3660 15 1 A-nn a.mz c.TJS 041 016 1 23 23 mo 00 _,_.,.,,, ' 049 016 1 35 35 970 99 2 .............. .... 013 012 1 4 4 1760 21 2 ci1 "' 01B 1 46 46 32BO 15 1 ~ 042 012 1 64 64 1350 15 1 ~ 050 016 1 9 9 97BO 99 2 , •AolW l.u6 Cd46 A-24'6 a.zm ~ W'3 8dl7 c.6'B ._.,.., a..wTO c.m .,..,...,. Es011 f.4tl • ...... DUS" 112awrllJa'IZ" 114-72" aS-'D5" ,,_.._..,_ AllllCMlll-111'- ~-111'- ""'1Uf/la _..,_ ~ ' CLIENT: II PROJECT IMPLEMENTATION CONSULTANT FILENMIEITtN BAN'£: : sr.ALEIrt Le: STATUSTlNHT~: PRO.ECTIDl/#.! : HANOI PILOT LIGHT METRO LINE Sectkln NOOn -HlllOI Ralway station ~ I CHOEl.Wnr: Tl1 VAA THVC Hll;N DIJ AN PIC-TEC-ORR-WVQ.JIM-1Mil68_2".DWa - Technical Design TU1N WONG sATBO rn1 rnlDlt::M TP HA NOi E>olil1 Nh&i- Ge Hill NOi ~ ~ ~ SYSTRAS.A DESIGNED BYITlll£'rKE: : FORtMTIKHO eANv£ : DATEINGAY: Tm.EI'Tt:N BANv£ : ~ 2A '''""' 2nd 11ubmi11ion of technical d81ign ~· 3.Mauria ........ HRB NHUE RIVER CROSSING '~ A.K A1 31/01110 lll1Q'T SONG NHUo7 ~§ '" 01/1Cll10 u,,.,..., H 3.Maurls ........ !!s '' ,...,, UM•'"' H IG. Maurta ........ CIECKED BYsoAT: Thia dr-ing rnJlll not ... - IDar-.d, coplacl ....- rapmcilcad DECK- ES1-ES2 - REINF - BAR LIST-1I3HANOI METROPOUTAN RAIL TRANSPORT PROJECT BOARD q ,. ,...,, UPDATE> ~· jG. Mauria '"""""" G. Mauris i1 whole ar in part or used for any Prl4XMI wihoU; lh8 priorwrillBn BAN ~TcAU- ES1-ES2-C0TTH~P- DANH Ml,ICTI-tANH-1 / ~ " 31/01/10 Fi181 llal8 ~· 3.Mauria ........ BAN OiiAN DUONG sAT001111 HA N()I permissiondHRB. ! • ""'"" ...... PROJECT DIRECTORIGIAM e0c IX/AN : CHIEFDESIGNERIa-iott11eM Tii1£T KE: : Bin v8 nQ" khOng o!uqc ph6p aC. dlol'IQ dUCI mQI hlrll tll)c, ml)! phln hay DRA'MNG NO.IBANv£ SO : ~ B REVISION OA" DESCRIPTION ClilEFOFDl!O IDAn bl), mil khOng o!uqc •II' .Dig~ ~IAln bin all. HRB. PIC-TEC-GRR-WVO-J04-18595-BS(IAOO """ NQI DUNG SO'A 001 THl~ICE "" Cl(JNIGlllETE Alain Bllchereau P.Amaud 2A
  • 133.
    Bir TJP! No..~ Tota ~ ~..8"d Bir TJP! No. .".:;.. Tota Lmglh ~· 8"d Bir TJP! No. ,'t, Tota l01glh '::8"d Bar T1pe No. .~ Tot~ Llngtht: Bmd Ai< "1d "·- No. Col! TJP! 111o.-. Shape Rn. •n ..i ".... N• Col! TJP! _,. Shipe Rn. ..n ..i .:!. ... No. TJpe ll1e11slans Shipe Rn. ..n ..i " ·- No. TJP! llilenslans Shipe Rn ... -- sin - - sin - ... --mm mm mm - a mm mm mm - a mm mm mm - a mm mm mm - a 051 D14 1 16 16 5770 25 1 Aall5 IWIJ Cd15 Ml5 &lt606 ~ 075 D14 1 1B 1B 3440 99 2 A.in a.m1 U2l'I n.uu ~ 104 D12 1 3 3 1120 15 1 A-"2 W65 c.6'1J ~ 151 D14 1 14 14 11BO 21 2 .........'""' cilll1all" .z.'11" 671" ...... ' ~ • ~ ~052 D14 1 16 16 5780 25 1 ""61J IWIJ c-515 M'l5 &Wiit 076 D14 1 1B 1B 3620 99 2 A-m ..,.. c-369 D-911 E-31'1 F-1Zf'I 105 D12 1 3 3 1B50 15 2 Aoit'166 "'"" C.'13 152 D1B 1 12 12 2140 00 ...,.. 01J5" Cl2a9I" lddl" a4-72" a5"1J!" • ~ cil'" D10 1 46 46 1740 15 2 "-"" """° c.wn-su 077 D14 1 4 4 1630 21 2 A-725 Bd4T C.'125 106 D16 1 3 3 5290 99 2 A-ut Wtt!i Cd1t4 MD .. .. 15l D1B 1 12 12 3140 00 ......• '..... •MO" az.r c:ddr 054 DB 1 4 4 1130 99 2 .... ...., """ ~ 071 D14 1 4 4 2700 21 2 A-m •n c.125 cil 107 D20 1 3 3 5560 21 2 WU..,._~ cil 154 D14 1 14 14 2260 15 1 Am60J W'J5 Cs16IJ ~ 055 DB 1 9 9 1130 99 2 .... ...., """ ~ 079 D10 1 1 1 B70 25 2 A-153 B-426 c-m n-m we ~ 101 D12 1 16 16 1160 21 2 A-S• a.ta-246 c.511 cil.... 155 D14 1 14 14 2340 15 1 A-Tm 84'15 c.iOJ ~ 056 DB 1 4 4 1130 99 2 ~ 080 D10 1 1 1 690 15 2 ~ 109 D12 1 10 10 910 21 2 y 156 D16 1 32 32 2025 00.... ...., ..... A-467 11"317 c.234 A-200 .... """ ...,.._,,,. MEAN ~ ~ ~057 DB 1 B B 1140 99 2 Ae'WI B-351 c.m 081 D10 1 1 1 900 99 2 ........,, 115 D14 1 16 16 1810 15 2 WO Wiit C.'llU 157 R10 1 4 4 1B10 00 ..,.,, ...... 051 DB 1 B B 1160 99 2 A.el a.351 C'"1ltO D"325 n 101 D1B 1 3 3 2730 11 1 ........~ ~ ,,. D14 1 32 32 1B40 15 2 WO Wiit C.Ui.3 ~ 151 R10 1 10 10 1500 21 1 A.s5I .... c.558 cil "' D14 1 54 54 1030 99 1 ..... E :i 102 D12 1 3 3 2700 99 2 ...~ ... c.511 ~ ,,, D14 1 4B 4B 1200 00 ...... 159 D10 1 B B 690 00 .....111-115• 112-n• E :i fl ~ ~060 D14 1 1B 18 1130 99 1 ..,,. 10J D12 1 3 3 2050 99 1 A-sJO a.149 c.tut. 150 D12 1 32 32 620 11 2 ..................... ,___,___. --cm>- __..,_ __.._ --1111'- ~ ' CLIENT: II PROJECT IMPLEMENTATION CONSULTANT FILENMIEITtN BAN v£ : sr.ALEIrt Le: STATUSTlNHT~: PRO.ECTIDl/#.! : HANOI PILOT LIGHT METRO LINE Sectkln NOOn -HlllOI Ralway station ~ I CHOEl.Wnr: Tl1 VAA THVC Hll;N DIJ AN PIC-TEC-ORR-WVQ.JIM-1Blll&8_2".DWa - Technical Design TU1N WONG sAT90 TI-II TI-IIDlt::M TP HA NOi E>o1i11 Nh&i- Ge Hill NOi ~ ~ ~ SYSTRAS.A DESIGNED BYITlll£'rKE: : FORtMTKHOeANv£ : DATENGAY: Tm.EITtN BAN v£ : ~ 2A '''""' 2nd 11ubmi11ion of technical deeign ~· 3.Mauria ........ HRB NHUE RIVER CROSSING '~ A.K A1 31/01110 lll1QT SONG NHUo7 ~§ '" 01/1Cll10 u,,...., H 3.Maurls ........ !!s '' ,...,, UM•'"' H IG. Maurta ........ CIECKED BYsoAT: Thia dr-ing rnJlll not ... - IDar-.d, coplacl ...- rapmcilcad DECK- ES1-ES2 - REINF - BAR LIST-2 I 3HANOI METROPOUTAN RAIL TRANSPORT PROJECT BOARD q ,. ,...,, UPDATE> ~· jG. Mauria "·""""" G. Mauris i1 whole ar in part or used fOr any Pll4XM8 wihoU; lh8 priorwrillBn BAN ~TcAU- ES1-ES2-C0TTH~P- DANH Ml,ICTI-tANH-2/ ~ " 31/01/10 Fi18118a111 ~· 3.Mauria ........ BAN OiiAN DUONG aA700 7111 HA N()I permissiondHRB. ! • ""'"" ...... PROJECT DIRECTORGIAM e0c IX/AN : CHIEFDESIGNERIa-iott11eM nil~ ~ : Bin ve nQ" khOng auqc ph6p ar. dlol'IQ dllCI mQI hlrll tll)c, ml)! phln hay DRA'MNG NO. IBANv£: SO : I2A~ B REVISION OA" DESCRIPTION ClilEFOFDl!O IDAn bl), mil khOng o!uqc •II' oD!g ~ ~IAln bin all. HRB. PIC-TEC-GRR-WVO-J04-18596-B,,,.... """ NQI DUNG SO'A 001 THl~ICE "" Cl(JNIGlllETE Alain Bllchereau P.Amaud
  • 134.
    r r Total Lengthsand Weights Number of members I Type T Type R BENDING DIAMETERS Imm! Total Tot-al ......... • ' 10 12 14 16 • 20 zz 25 " " " 40 Lengths of standard hooks lmmJTot-al Weight Tot-al Weight HooksDiameter Length per unit- Weight Length per unit- Weight (Type 11 " 48 .. 12 .. .. 108 120 B2 150 224 256 288 320 D11111t.r• 6 I I 10 I 12 14 16 I 11 20 I 22 25 211 3Z 36 I 40 lml (kg/m) lkg) lml lkg/m) lkg) D Frani1s 24 " 40 48 56 .. 108 120 B2 150 224 256 288 '"6 0 0.222 0,00 0 0.222 0,00 IT- 2) 8 172 0.395 67.91 0 0.394 0.00 Hooks o o o o o o o o o o o • o o linmir~r " .. 121 144 161 192 216 240 264 300 "' ,..432 480(Type 11 ITJpe R ,,.,_ @_ D ,,_10 150 0.617 92.62 22 0.617 13.72 o o o • o o o o o o o o • o T2 .. 120 164 161 192 216 248 264 "' "' ... 432 480(Tvn1 21 1T--ti 12 1659 0.888 1473.35 0 0.888 0,00 linthor~r o o o o o o o o o o o o D oITJPI 14 744 1.210 900.05 0 1.208 0.00 R ,,_ D D o D D o o o o o o D o o 16 1196 1.580 1889.98 0 1.580 0,00 IT·-ti 18 288 2.000 576.62 0 1.997 0.00 BAR DIMENSIONS 20 293 2.470 722.72 0 2.470 0.00 - THE DIMENSIONS ARE GIVEN ON THE OUTSIDE FIBER OF THE REBAR ISEE BELOWI •nmir:r " 48 .. T2 .. .. 111 120 132 fiD "' llZ 216 240 ~ D !Type 22 0 2.980 0,00 0 2.980 0,00 - THE TOTAL LENGTHS ARE CALCULATED ON THE BASIS OF THE CENTERLINE. ,,_ " 48 .. " .. .. IOI 120 132 fiD 168 192 216 240 (ISO 3766'2004 - METHOD B) 1T··-- ti 25 393 3.850 1512.86 0 3.850 0.00 Mnmor:r o o o o o o D oITJPI o o o o o o 28 0 4.830 0.00 0 4.830 0.00 - THE BENDING ANGLES ARE GIVEN IN DEGREES. R ,,._ D D o D D o D o D D o D D o32 0 6.310 0,00 0 6.310 0,00 ,A ,-L IT.... ti 36 0 7.990 0.00 0 7.990 0.00 li~ •nmir:r T2 " .. WO 112 UI 144 "' 40 0 9.860 0.00 0 9.870 0.00 iii ~ ~ ,tt- !Type " " " " " "D ,,._IT.... ti " " " " " " T2 " .. •• 112 UI 144 "''--- ~nmor~r o o o o o o o o o o o o D oType T Type R R ITJPI Total Length - Bended: 3184 15 ,,._ D D o o D o o o o o o o o oIT.... ti Total Length - Straight 1711 7 "'Total Length (ml 4895 22 Total Weight - Bended: ms 9 Total Weight - Straight: 1901 4 Total Weight (kg) 7236 14 Mean Size Imm]: GENERAL WEIGHT kg I 15.5 I I 7250 I c Armo[AD• OTP __..,_ __..,_ ~ ~ CLIENT: II PROJECT IMPLEMENTATION CONSULTANT FILENMIEITtN BAN v£ : SCALEIit t< ' $TATUSIT1NHT~: PRO..ECTIDl,l'AN: HANOI PILOT LIGHT METRO LINE Section NIKJn - Hanoi Ralway station ~ I CHOEIAUnr: Tll VAN THVC Hll;N DIJ AN PIC-TEC-ORR-WVQ.JIM-1Mll7-8_2".DWa - Technical Design TM:N Etro'NG sA.T fJO TH[ TI-IIEl~M TP HANOi ~ Nh~ -Ga Hl NOi ! • SYSTRASA DESIGNED BYITlll£'r KE; : FORtMTIKHOBANv£ : DATENGAY: TITLEITtN BAN VE : NHUE RIVER CROSSING "~ '~ "' '''""' 2nd 1ubmi11ion of technical d811ign ~· 3.Mauria .Arnaud HRB A.K A1 31/01110 lll1Q'T SONG NHUo7 ~. '° 01/1Cll10 """'""' H 3.Maurls .Arnaud !! . 1C ....10 u~•.., H IG. Maurta P.Amaud CIECKED BYsoAT: Thia dr-ing rnJlll not ... - IDar-.d, coplacl ....- rapmcilcad DECK- ES1-ES2 - REINF - BAR LIST-3 I 3.~ " ,...,, UPDATE> ~· jG. Mauria P.Amaud HANOI METROPOUTAN RAIL TRANSPORT PROJECT BOARD G. Mauris i1 whole ar in part orused for any prl4)Ca wihoU; lh8priorwrillBn BAN ~TcAU- ES1-ES2-C0TTH~P- DANH Ml,ICTI-tANH-3/•§ BAN llllAN IJUONG sAT!JO THI HA N()I permlallanafHRB. ~ 3Ul1110 Fi181 l8al8 ~· 3.Mauria .Arnaud ! • ,. PROJECTDIRECTORIGIAMElOC IX/AN : CHIEFDESIGNERICHO MileM Tlll£'r KE; : Bin ve nQ" khOng auqc ph6p ar. dlol'IQ dllCI mQI hlrll tll)c, ml)I phln hay DRA'MNG 00..IBAN VE SO : I2A~ 0. """"" '"' DESCRIPTION -·· """" ClilEFOFDl!IDI Alain Bllchereau IDAn bl), mil khOng o!uqc •II' .Dig~ ~IAln bin all. HRB. PIC-TEC-GRR-WVO-J04-18597-B~ li SOAOO NGAY NQI DUNG SCrA E>OI llil~KE '" ctiONIGnETlll! P.Amaud •
  • 135.
    ~ ~ '' Ii! I! t i ~ii: I L~· I I 1-·-·-·-___y~-·-I I I I 1 I I -i.,E> ' I I I I c~ v / rh r=F? ILLJ I!! o----+---+---------------_.____.....__ __......__ __. Q.IENT: ~ o----+---+---------------_.____.....__ __......__ __. CHOflAuru: u 3" 21/11Y11 Upda111d w .!: 2A 3004'11 2nd aubml11lon at'lechnlcal dMlgn 1C ~8110 A.K A . K A . K SECTION 1-1 MAT CAT 1-1 §c- SCALE: 1/10 'NL!;: 1/10 I 1-016 sJI I 1-016 @LJ ' HRB so @l c:::::::J SECTION B-8 MAT CAT B-B SCALE: 1/10 ITLI;: 1/10 • PROJECT IMPLEMENTATION CONSULTANT 11 VAN THl,IC HleN DI,/ AN SYSTRAS.A F % Upda111d !I $i 18 2MIBl10 UPDATED !;l 8 A . K HANOI METROPOLITAN RAIL TRANSPORT PROJECT BOARD t----+---+----------------4-,.-.K---4----1----l BAN DI/AN llWNG sA.rllOTHI llANQI u 1A 31m1110 REVISION DATE B SLrAOOI Nal.Y Flr"1,_., DESCRIPTION NQI DUNGWAfJOI IHIHl!BI' HIM! CllllClllBI' IOI.! PROJECTDIRECTORGIAMaocDI/AN: Alain B~cheraau ---·-·-·-·-- ~r-- --·-·-·-· FILE NAA1ElTtNBAN/£: DESIGNED BYTH1£TK£: A. K CHECKED BYSlll.T: G. Maur1s CHIEFDESIGNERCll) NHleMlll1£rK£: P. Amaud SECTION A-A MAT CATA-A •SCALE: 1110 ITLI; :1/10 SCALETYLE: FORMATKHO BAN VE: A1 STAlUS TfNH~G : Teclmical Design DAlENGAY: 31/01/10 Thil <Rwi'ID mUll:notbe eithlrlOlrled,<q>ied«otl'lll'Wile NP'Odiacl ln wtdeah P11rtor ul8dfor•nr prupmewllhoul:.. prlor'Mltsl parmlllllonot HRB. ......My_..,.,._.......ng ..... ..,.. .... _m(llpMnt.y .... ~ ... - .........~t~ ,,.,, ...... HRB. NOTES : ~~~~~~~~~~~~~~~ GHI CHIJ: 1. REINFORCEMENT YIELD STRENGTH: FY=420 MPA. 1. CllONG DO CHAY COACOT THEP fc=420 Mpa. 2. CONCRETE COVER: C=50 MM. 2. LdP BE TONG BAf> VI; c=50 mm PROJECT CVAN: HANOI PILOTLIGHT METRO LINE Sedion Nhon•HantiRailway S1ation TIJY£NflOONG sATElOTHITHIfll~M 1l'HANQI ElatnN~n · Ga Hi NOi Tm.ETtNBANVE: NHUE RIVER CROSSING VU'QT SONG NHUI;: DECK - BLISTER TYPE 7 - REINF BAN MAT cAU-BLISTER LO~l 7. c0TTHIOP DRAl'l1NGNO.BANV£SO: PIC-TEC-GRR-WVO-J04-18650-B 3A
  • 136.
    Total Lengths andWeights No. 1~fNboar Number of members 1 B" Type Toliil Shope Bend mork ocd of ineo(h No Length Code Type Dimensions Shope R"" s12e memb memb Type T Type R BENDING DIAMETERS (mm! mm mm mm a Lengths of standard hooks (mm) • Total Weight Total Total Weight Total Diameters 6 8 10 12 14 16 18 20 22 25 28 ~Q Diameter Length per unit Weight Length per unit Weight Hooks Diameters 6 8 10 12 14 16 18 20 22 25 001 014 1 17 17 2615 99 2 A=599 B=669-,J61 C=90D--1DJB 0=605 lml (kg/m) lkg) lml lkg/m) lkg) (Type 11 36 48 60 72 84 96 108 120 132 150 224 MEAN c.:1=B2° c.:2=73" c.:3=99" 6 0 0.222 0 00 0 ~= '"' .,,.... .., Frames 24 32 40 48 56 64 108 120 132 150 224 ~ 8 0 0.39 5 0.00 !Type 2) nchorages 02A 016 1 2 2 3840 99 1 A=194 B=691 [=2429 Hooks !Type 1) 72 96 120 144 168 192 216 240 264 JOO a1=101" aZ=B7" 10 0 0 617 0.00 (Type 1) 0 0 0 0 0 0 0 0 0 0 0 0 R ~ Frames 12 46 0.888 41.14 Frames (Type 2) 0 0 0 0 0 0 0 0 0 0 ~ !Type 21 0 0 0 0 0 0 0 0 0 0 0 028 016 1 1 1 3840 99 1 A=794 B=691 [=2429 14 44 1210 53.80 !.nchorages c.:1=101° a1:=87° !Type 1) 72 96 120 144 168 192 216 240 264 300 16 17 1.580 27 03 R 4=d1 18 0 BAR DIMENSIONS Frames 0 0 0 0 0 0 0 0 0 0 2.000 0.00 (Type 2) 003 016 1 1 1 2740 21 2 A=1088 B=10ZZ [=707 20 0 2 470 0.00 - THE DIMENSIONS ARE GIVEN ON THE OUTSIDE FIBER OF THE REBAR ISEE BELOW) 4=d1 22 0 2 980 0 00 - THE TOT AL LENGTHS ARE CALCULATED ON THE BASIS OF THE CENTERLINE 004 016 1 1 1 2850 21 2 A=1321 B=B93 [=707 25 0 3 850 0.00 !ISO 3766:2004 - METHOD B] l.nchorages 36 48 60 72 84 96 108 120 132 150!Type 1) 28 0 4.830 0.00 - THE BENDING ANGLES ARE GIVEN IN DEGREES ~ 0 Frames IType 21 0 0 0 0 0 0 0 0 0 0 32 0 6 310 0 00 r'17 E 005 012 1 17 17 1925 99 2 •-1W UO c-;;q;; o-m U1'--011 e-"°0 nchorages 36 0 7 990 0.00 - 36 48 60 72 84 96 108 120 132 150 MEAN c.:1=135" aZ=91" c.:3=98" a4=B1" a5=135" "' !Type 1) ~= '"' .,,.... . ., 0 R 0 40 0 9.860 0.00 Frames 4 ITvoe 21 0 0 0 0 0 0 0 0 0 0 006 012 1 5 5 2720 99 2 A=110 B=108Z [=251 0=987 E=151 f=11Dn t~ a1=1l5° a2=99" al=B1" a4=71" a5=135" 0 Type T Type R Total Length - Bended: 108 nchorages 65 65 65 65 65 65 72 80 88 100 ,tr- !Type 1) Total Length - Straight: 0 0 0 Frames 0 0 0 0 0 0 0 0 0 0 Total Length (m): 108 (Type 21 ' !Anchorages Total Weight - Bended 122 " !Type 1) 65 65 65 65 65 65 72 80 88 100 R Total Weight - Straight: 0 Frames 0 0 0 0 0 0 0 0 (Tv~e 21 0 0 Total Weight (kg): 122 ~ t?Mean Size Imm) GENERAL WEIGHT kg I 13.5 I I 122 I AcmoCAD•-OTP- Amo[AO• DTP ArmoEAD•-OTP- Arrno[~D• - OTP - ~ I CLIENT: II PROJECT IMPLEMENTATION CONSULTANT FILENMIEITtN BAN'£: : sr.ALEIrtL(: : STATUSTlNHT~: PRO.ECTIDl/ #.! : HANOI PILOT LIGHT METRO LINE Sectkln NOOn - HlllOI Ralway station •ii ~ ~ CHOEl.Wnr: Tl1 VAA THVC Hll;N DIJ AN PIC-TEC-ORR-WVQ.JIM-1M51-8_2oU!Wa - Technical Design TU1N WONG sATBO rn1 rnlDlt::M TP HA NOi E>olil1 Nh&i- Ge Hill NOi SYSTRAS.A ~ '~ HRB DESIGNED BYITlll£'r KE: : FORtMTIKHO eANv£ : DATEINGAY: Tm.EITtN BAN v£ : NHUE RIVER CROSSING 7 ~§ "' "'"'11 2nd submission of lechnlcal des91 H G.Maurls ..-... A.K A1 31/01110 lll1QT SONG NHUo !!s 1C ....10 u~•.., H ~.Maurie ..-... CIECKED BYsoAT: 1B ,...,, UPDATE> ~· IG. Maurie •..-... HANOI METROPOUTAN RAIL TRANSPORT PROJECT BOARD Thlad-ngrnJlllnolba-IDal-.d,coplaclor-rapmcilcad DECK· BLISTER TYPE 7 • REINF ·BAR LIST q G. Mauris i1 whole ar in part or used for any prl4)Ca wihoU; lh8 priorwrillBn ~ 1A 31/01/10 Fi18118a111 ~· G.Mauris ..-... BAN OiiAN DUONG sAT00 1111 HA N()I permissiondHRB. BAN ~T cAU - BLISTER L0"'-1 7 -COT TI-l~P - DANH MVC TI-IAN ! • PROJECTDIRECTORIGIAMe0c IX/AN : CHIEFDESIGNERIa-io tt11eM Tii1£T KE: : Bin ve nQ' khOng auqc ph6p ar. d1o11g dllCI mQI hlrll tll)c, ml)I phln hay DRA'MNGNO.IBAN v£ SO : ~ B REVISION OAIE DESCRIPTION ""'"" -· ClilEFOFDl!O I2A "''"' "" NQI DUNG SO'A 001 THl~ICE "" Cl(JNIGlllETE Alain Bllchereau P.Amaud IDAn bl), mil khOng o!uqc •II' .Dig~ ~IAln bin all. HRB. PIC-TEC-GRR-WVO-J04-18651-B
  • 138.
    r r Total Lengthsand Weights .~ Number of members I a.. TJpe No. Tot• ltnglh~·pe ll01d Hk illll ".... No. Cade TJPI lll111- Shope Rn. Type T Type R BENDING DIAMETERS !mm)... -- Lengths of standard hooks !mm)mm mm mm - u Total Weight Total Total Weight Total Diameters 6 8 10 12 14 16 18 20 22 25 28 Diameter Length per unit Weight Length per unit Weight Hooks Diameters 6 I 8 I 10 12 14 I 16 I 18 20 22 I 25 001 014 I IS IS 2945 99 2 A=59J-,585 8=1044-,1151 [=579-,865 0=605 .,..~ lml lkg/m) lkg) lml lkg/m) lkg) (Type 11 36 48 60 72 84 96 108 120 132 150 224 MEAN o:1=59"->58"a:2=76"-·75"a3=90" 6 0 0.222 0.00 D Frames ~= '"'-.., 0 (Type2) 24 32 40 48 56 64 108 120 132 150 224 ~ 8 0 0.395 0.00 .,nchora%es 72 96 120 144 168 192 216 240 264 30002A 016 I I I 4030 99 2 A=751 B=891 [=2444 Hooks (Type 1 10 0 0.617 0.00 (Type 11 0 0 0 0 0 0 0 0 0 0 0 D0:1=105°0:2=87° R ll Frames 0 0 0 0 0 0 0 0 0 012 47 0.888 41.45 Frames ITvoe 21 ~ (TYDl2) 0 0 0 0 0 0 0 0 0 0 0 02B 016 I I I 4070 99 2 A=751 B=941 [=2441 14 44 1.210 53.46 "nchora%es (Type 1 72 96 120 144 168 192 216 240 264 300 0:1=105°0:2=87° 16 14 1.580 22.06 R Frames ciI 18 0 2.000 0.00 BAR DIMENSIONS )Type2) 0 0 0 0 0 0 0 0 0 0 003 016 I I I 2900 21 2 A=1009 B=952 [=1009 20 0 2.470 0.00 - THE DIMENSIONS ARE GIVEN ON THE OUTSIDE FIBER OF THE REBAR (SEE BELOW) 22 0 2.980 0.00 ciI - THE TOTAL LENGTHS ARE CALCULATED ON THE BASIS OF THE CENTERLINE. "nchora%e1 004 016 I I I 2960 21 2 A=1009 B=1013 [=1009 25 0 3.850 0.00 (ISO 3766•2004 - METHOD Bl (Type 1 36 48 60 72 84 96 108 120 132 150 4.830 - THE BENDING ANGLES ARE GIVEN IN DEGREES. ff D Frames28 0 0.00 0 0 0 0 0 0 0 0 0 0 A=91 B=264 [=979 D=264 E=1049 F=91i ' 32 0 6.310 0.00 (Type2) 005 012 I s s 2660 99 2 lo 11~~ ..nchora%e! 36 48 60 72 84 96 108 120 132 150 011=135° 012=72" 013=9D0 014=9D" 015=135° c 36 0 7.990 0.00 (Type 1 R -00 40 0 9.860 0.00 Frames 0 0 0 0 0 0 0 0 0 0(Type 21 006 012 I IS IS 2225 99 2 A=91 B=698-.986 C=250 D=641:-.930 E=1:47 F=91 MEAN Dl1=135° Dl2=9D0 Ol3=90" Ol4=75" c'5=135° ~= '"'-'''" c Type T Type R ..nchora%e 65 65 65 65 65 65 72 80 88 100Tot-al Length - Bended: 105 ,tf- (Type 1 Tot-al Length - Straight-: D Frames0 0 0 0 0 0 0 0 0 0 0 Tot-al Length (ml: 105 (!voe 21 nchora%e! Tot-al Weight- - Bended. 116 (Type 1 65 65 65 65 65 65 72 80 88 100 R FramesTot-al Weight- - Straight- 0 0 0 0 0 0 0 0 0 0 0 Tot-al Weight- (kg): 117 (Type 21 Mean Size Imm] GENERAL WEIGHT kg II 13.5 I I 117 I c__..,_ A•moCAD• DTP ,..,,,,.,._..,_ -- --- ~ ' CLIENT: II PROJECT IMPLEMENTATION CONSULTANT FILENMIEITtN BAN v£ : sr.ALEIrtLe: STATUSTlNHT~: PRO.ECTIDlf AN : HANOI PILOT LIGHT METRO LINE Sectkln NOOn - HlllOI Ralway station i I CHOEl.Wnr: Tl/ VAA THVC Hll;N DIJ AN PIC-TEC-ORR-WVQ.JIM-1-.S_JIA.DWa - Technical Design TU1N WONG sATBO rn1 rnlDlt::M TP HA NOi E>olil1 Nh&i- Ge Hill NOi ~ ~ SYSTRAS.A DESIGNED BYITlll£'r KE: : FORtMTIKHO eANv£ : DATEINGAY: Tm.EITtN BAN v£ : ~ HRB NHUE RIVER CROSSING '~ A.K A1 31/01110 lll1QT SONG NHUo7 ~§ "' "'"'11 2nd submission of lechnlcal des91 H 3.Maurls -""""" !!s 1C ....10 UM•'"' H IG. Maurts -""""" CIECKED BYsoAT: Thladr-ingrnJlllnolba-IDar-.d,coplaclor-rapmcilcad DECK - BLISTER TYPE 6 - REINF - BAR LISTHANOI METROPOUTAN RAIL TRANSPORT PROJECT BOARD q 1B =•10 UPDATE> ~· jG. Maurie '"""""" G. Mauris i1 whole ar in part or used for any prl4)Ca wihoU; lh8 priorwrillBn BAN ~T cAU - BLISlER L0"'-1 6 -COT TI-l~P - DANH MVC TI-IAN ~ 1A 31/01/10 Fi18118a111 ~· 3.Mauris ·""""" BAN OiiAN DUONG BAT 00 THI HA NOi permissiondHRB. ! • ""'"" ...... PROJECTDIRECTORIGIAMe0c IX/AN : CHIEFDESIGNERIa-io tt11eM Tii1£T KE: : Bin ve nQ' khOng auqc ph6p ar. d1o11g dllCI mQI hlrll tll)c, ml)! phln hay DRA'MNGNO.IBAN v£: SO : ~ B REVISION "'"' DESCRIPTION ClilEFOFDl!O IDAn bl), mil khOng o!uqc •II' .Dig~ ~IAln bin all. HRB. PIC-TEC-GRR-WVO-J04-18653-B ''""" """ NQI DUNG SO'A 001 THl~ICE ... OONIGlllETE Alain Bllchereau P.Amaud 2A
  • 139.
    SECTION B-B MAT CAT8-80 SCALE: 1/10 TYL!;: 1110 nn®® ! ,-t--1-----------~~~: /i L_j J I I .J ~ :r-/---rl~--f=i==..--~__J I I I I {= !=? ""' __, " " " i' /"- " " " " ' ' ' ' - - ' I ' -~··- ~·- - ·- - ~·- - - - ~ -- - - I I-- !--- ~ ~ f- ~ ~ '- . :-. . !--- J--- e-- -ti= ~ 1- L-.- -l.ILII W L.m-11 . SECTION A-A MAT CAT A-A SCALE : 1/10 T'f'LI; :1110 ,
  • 140.
    r r Total Lengthsand Weights ..~ Number of members I a.. TJpe No. Tot• ISh•pe ll01d Hk illll """" No. ltnglh Cade TJPI lll111- Shope Rn. Type T Type R ... -- BENDING DIAMETERS !mm) mm mm mm - n Lengths of standard hooks !mm) Total Weight Total Total Weight Total Diameters 6 8 10 12 14 16 18 20 22 25 28 -~ Diameter Length per unit Weight Length per unit Weight Hooks Diameters 6 I 8 I 10 12 14 I 16 I 18 20 22 I 25 001 D14 1 15 15 2515 99 2 A.ser. ~ c.m-M o.sn lml lkg/m) lkg) lml lkg/m) lkg) (Type 11 36 48 60 72 84 96 108 120 132 150 224 ION ~· .z.n·aJatr 6 0 0.222 0.00 D Frames ~= '"'-"l'll3o.......... ' 24 32 40 48 56 64 108 120 132 150 224 ~ 8 0 0.395 0.00 11... 21 "nchora%es OZA D16 1 1 1 3890 99 1 A-'J6T a.TU Cd452 Hooks (Type 1 72 96 120 144 168 192 216 240 264 300 10 0 0.617 0.00 (Type 11 0 0 0 0 0 0 0 0 0 0 0 D..........,. R ll Frames 12 41 0.888 36.26 Frames ITvne 21 0 0 0 0 0 0 0 0 0 0 ~ (Tvoo 21 0 0 0 0 0 0 0 0 0 0 0 028 D16 1 1 1 3950 99 1 """'' ....., c.2449 14 39 1.210 46.74 'nchora%es ..........,. (Type 1 72 96 120 144 168 192 216 240 264 300 16 14 1.580 21.54 R ciI 18 0 2.000 0.00 BAR DIMENSIONS Frames 0 0 0 0 0 0 0 0 0 0 003 D16 1 1 1 2860 21 2 A-1051 W35 Cdl51 )Tvoe 2) 20 0 2.470 0.00 - THE DIMENSIONS ARE GIVEN ON THE OUTSIDE FIBER OF THE REBAR (SEE BELOW) ciI 22 0 2.980 0.00 - THE TOTAL LENGTHS ARE CALCULATED ON THE BASIS OF THE CENTERLINE. 'nchora%e1 004 D16 1 1 1 2930 21 2 Adl51Mlll C"1ll51 25 0 3.850 0.00 !ISO 3766•2004 - METHOD Bl (Type 1 36 48 60 72 84 96 108 120 132 150 28 0 4.830 0.00 - THE BENDING ANGLES ARE GIVEN IN DEGREES. ff D Frames • ITvoe 21 0 0 0 0 0 0 0 0 0 0 A-fl 1-00 c.llT DsZTI EatJI F-91 J( 32 0 6.310 0.00 005 D12 1 5 5 2450 99 2 J.. 11~"7~ ~nchora%es D'IJ5" cdall" cda9I" Cl4a9I" 6'1J5" ' 36 0 7.990 0.00 (Type 1 36 48 60 72 84 96 108 120 132 150 40 0 9.860 0.00 R Frames IT••• 21 0 0 0 0 0 0 0 0 0 0 006 D12 1 15 15 1905 99 2 Adi 1""1 C..m-421 '""'...,._.,, '"''"lJ"ION ll1sU5" ·~ ll3atr .... ~ ~= '"'-"'"' . Type T Type R Total Length - Bended: 93 "nchora%e 65 65 65 65 65 65 72 80 88 100 ,tf- (Type 1 Total Length - Straight: 0 D Frames Total Length (ml: IT••• 21 0 0 0 0 0 0 0 0 0 0 93 nchora%e! Total Weight - Bended. 105 (Type 1 65 65 65 65 65 65 72 80 88 100 Total Weight - Straight 0 R Frames IT•oe 21 0 0 0 0 0 0 0 0 0 0 Total Weight (kg): 105 Mean Size Imm] GENERAL WEIGHT kg I 13.5 I I 105 I c__..,_ A•moCAD• DTP ,..,,,,.,._..,_ -·- --- ~ I CLIENT: II PROJECT IMPLEMENTATION CONSULTANT FILENMIEITtN BAN v£ : sr.ALEIrtL(: : STATUSTlNHT~: PRO.ECTIDlf AN : HANOI PILOT LIGHT METRO LINE Sectkln NOOn - HlllOI Ralway station i CHOEl.Wnr: Tl1 VAA THVC Hll;N DIJ AN Technical Design ~ ~ PIC-TEC-ORR-WVQ.JIM-1Mll68_2".DWa - TU1N WONG sATBO rn1 rnlDlt::M TP HA NOi E>olil1 Nh&i- Ge Hill NOi SYSTRAS.A ~ '~ HRB DESIGNED BYITlll£'rKE: : FORtMTIKHO eANv£ : DATEINGAY: Tm.EITtN BAN v£ : NHUE RIVER CROSSING 7 ~§ "' "'"'11 2nd submission of lechnlcaldes91 H G.Maurls ........ A.K A1 31/01110 lll1QT SONG NHUo !!s 1C ....10 u~•.., H ~.Maurie ........ CIECKED BYsoAT: 1B ,...,, UPDATE> ~· IG. Mauria "·""""" HANOI METROPOUTAN RAIL TRANSPORT PROJECT BOARD Thlad-ngrnJlllnolba-IDal-.d,coplaclor-rapmcilcad DECK - BLISTER TYPE 5 - REINF - BAR LIST q G. Mauris i1 whole ar in part or used fOr any Pll4XM8 wihoU; lh8 priorwrillBn ~ 1A 31/01/10 Fi181 l8al8 ~· G.Mauria ........ BAN OiiAN DUONG BAT 00 THI HA NOi permissiondHRB. BAN ~T cAU - BLISlER L0"'-1 5 -COT TI-l~P - DANH MVC TI-IAN ! • PROJECTDIRECTORIGIAMe0c IX/AN : CHIEFDESIGNERIa-io tt11eM Tii1£T KE: : Bin ve nQ'khOng auqc ph6p ar. d1o11g dllCI mQI hlrll tll)c, ml)I phln hay DRA'MNGNO.IBAN v£ SO : ~ B REVISION "'"' DESCRIPTION ""'"" ...... ClilEFOFDl!O ,,,..., """ NQI DUNG SO'A 001 THl~ICE "" Cl(JNIGlllETE Alain Bllchereau P.Amaud IDAn bl), mil khOng o!uqc •II' .Dig~ ~IAln bin all. HRB. PIC-TEC-GRR-WVO-J04-18655-B 2A
  • 141.
    ~ ~ "' I!! ll! ~ !!! u11 iw g F % !I $i !;l 8 ~ uii: B 001 15-014 @l150 OQS,f-----+----~ I'-. !"-. ns 1-016 ['-.. ['-.. 003 1-016 I n !"-. I I I I I I I I I I I I I I I I I I I I I I I I I I I : : l I I I I I I I I I : I : ' ' I : I -::::-J ~"---+-1---++---~1 '-------------~1.~02s I ' ' ' --:J l-----+----------1,------<02A ">+----++----+---------·'~_,ao6 D I"- I"'-, o----+---+---------------_.____.___ __...__ __. Q.IENT: o----+---+---------------_.____.___ __...__ __. CHOflAuru: 3" 21/11Y11 2A 3004'11 Upda111d A.K ll.Miwrto LI•.laing HRB2nd aubml11lon at'lechnlcal dMlgn A . K n. Mowrto ... Arnaud 1C ~8110 18 2MIBl10 1A 31m1110 Upda111d A . K n. Mowrto ... Arnaud UPDATED A . K ll. Miwrto ... Arnaud HANOI METROPOLITAN RAIL TRANSPORT PROJECT BOARD Flr"111a» A . K ll. Mowrto P. Arnoud BAN DI/AN llWNG sA.ra0 THI HA NQI REVISION DATE DESCRIPTION IHIHl!Bl' CllllClllBl' l>&IJ"lllllill SLrAOOI Nal.Y NQI DUNGWAfJOI HIM! IOI.! otl1t11;M1111!rl! -- ···----·- ....----- ·- ..-----·~-~··· - .------·- ~ 1~·- ~ ,_ ~·- - ·- - ---··--- · -~ -1--- L.---- •PROJECT IMPLEMENTATIONCONSULTANT 11 VAN THl,IC HleN DI,/ AN SYSTRAS.A PROJECTDIRECTORIGIAMaocDI/AN: Alain B~cheraau !..-- I~ I-- n I@ 016 t@ .___~ i--- I-< i---- L--- -<.- - - D006 FILE NAA1ElTtNBAN/£: DESIGNED BYTHli;rK£ : A. K CHECKED BYSlll.T: G. Maur1s CHIEF~IGNERCll) NHleMTH1£r Ke: P. Amaud -r~'o1-( ~'-1: -e-- -~ -- SCALEITYLE: FORMATKHO BAN VE: A1 nt--@ J-.--- .__......, J.--- '- I-- SECTION A-A MAT CATA-A SCALE: 1/10 TI'Ll1.: 1/10 STAlUS TfNH~G : Teclmical Design DAlEINGAY: 31/01/10 Thil <Rwi'ID mUll:notbe eithlrlOlrled,<q>ied«otl'lll'Wile NP'Odiacl ln wtdeah P11rtor ul8dfor•nr prupmewllhoul:.. prlor'Mltsl parmlllllonot HRB. ......My_..,.,._.....,ng.......,......_m(llpMnt.y ....~ ...- .........~t~ '"""'" "'" """· I ) I ~ - NOTES : --------------~ GHI CHIJ: 1. REINFORCEMENT YIELD STRENGTH: FY=420 MPA. 1. CllONG DO CHAY COACOT THEP fc=420 Mpa. 2. CONCRETE COVER: C=50 MM. 2. LdP BE TONG BAf> ve.c=50 mm PROJECTIOI,/AN: HANOI PILOTLIGHT METRO LINE Sedian Nhon•HantiRailway S1ation TIJY£NflOONG sAr ElOTHITHIfll~M TPHANQI ElatnN~n · Ga Hi NOi mtETtNBANVE: NHUE RIVER CROSSING VU'QT SONG NHUI;: DECK - BLISTER TYPE 4 - REINF BAN MAT cAu. BLISTER LO~I 4. cOrn-11: P DRAl'l1NGNO.' BANV£so: IPIC-TEC-GRR-WVO-J04-18656-B 3A
  • 142.
    r r Total Lengthsand Weights .~ Number of members I a.. TJpe No. Tot• ltnglh~·pe ll01d Hk illll ".... No. Cade TJPI lll111- Shope Rn. Type T Type R BENDING DIAMETERS !mm)... -- Lengths of standard hooks !mm)mm mm mm - u Total Weight Total Total Weight Total Diameters 6 8 10 12 14 16 18 20 22 25 28 Diameter Length per unit Weight Length per unit Weight Hooks Diameters 6 I 8 I 10 12 14 I 16 I 18 20 22 I 25 001 014 I IS IS 2690 99 2 A=592-,600 B=1032->90B [=753-,422 0=60~~ lml lkg/m) lkg) lml lkg/m) lkg) (Type 11 36 48 60 72 84 96 108 120 132 150 224 MEAN C11=51"->58" C12=15"->1b° Cl!3=90° 6 0 0.222 0.00 D Frames I~ ' 0 24 32 40 48 56 64 108 120 132 150 224 '""' ri~~,~~Var ~ 8 0 0.395 0.00 (Type2) .,nchora%es 02A 016 I I I lll'lo 99 2 A=611 B=S31 [=2445 Hooks (Type 1 72 96 120 144 168 192 216 240 264 300 10 0 0.617 0.00 (Type 11 0 0 0 0 0 0 0 0 0 0 0 D0:1=105°0:2=87° R ll Frames 0 0 0 0 0 0 0 0 0 012 43 0.888 38.58 Frames ITvoe 21 ~ (TYDl2) 0 0 0 0 0 0 0 0 0 0 0 02B 016 I I I 3880 99 2 A=611 B=884 [=2442 14 40 1.210 48.82 "nchora%es (Type 1 72 96 120 144 168 192 216 240 264 300 0:1=105°0:2=87° 16 14 1.580 21.35 R Frames ciI 18 0 2.000 0.00 BAR DIMENSIONS )Type2) 0 0 0 0 0 0 0 0 0 0 003 016 I I I 2870 21 2 A=1051 B=843 [=1051 20 0 2.470 0.00 - THE DIMENSIONS ARE GIVEN ON THE OUTSIDE FIBER OF THE REBAR (SEE BELOW) 22 0 2.980 0.00 ciI - THE TOTAL LENGTHS ARE CALCULATED ON THE BASIS OF THE CENTERLINE. "nchora%e1 004 016 I I I 2930 21 2 A=1051 B=904 [=1051 25 0 3.850 0.00 (ISO 3766•2004 - METHOD Bl (Type 1 36 48 60 72 84 96 108 120 132 150 4.830 - THE BENDING ANGLES ARE GIVEN IN DEGREES. ff D Frames28 0 0.00 0 0 0 0 0 0 0 0 0 0 A=91 B=269 C=B66 D=269 E=93B F=91 t ' 32 0 6.310 0.00 (Type2) 005 012 I s s 2450 99 2 Jo 11~~ ..nchora%e! 36 48 60 72 84 96 108 120 132 150 011=135° 012=72° 013=9D0 014=9D" 015=135° ' 36 0 7.990 0.00 (Type 1 R, 40 0 9.860 0.00 Frames 0 0 0 0 0 0 0 0 0 0 A=91 B=2'J2 [=874->495 D=274 E=934-.SSS F=91:ow (Type 21 006 012 I IS IS 2080 99 2 1= D11=135° D12=75° 013=9D0 D14=9D" 015=135° ' 0 Type T Type R """'""' ..nchora%eBlNH Total Length - Bended: 97 ,tf- (Type 1 65 65 65 65 65 65 72 80 88 100 Total Length - Straight: D Frames0 0 0 0 0 0 0 0 0 0 0 Total Length (ml: 97 (!voe 21 nchora%e! Total Weight - Bended. 109 (Type 1 65 65 65 65 65 65 72 80 88 100 R FramesTotal Weight - Straight 0 0 0 0 0 0 0 0 0 0 0 Total Weight (kg): 109 (Type 21 Mean Size Imm] GENERAL WEIGHT kg II 13.5 I I 109 I c__..,_ A•moCAD• DTP ,..,,,,.,._..,_ -- --- ~ ' CLIENT: II PROJECT IMPLEMENTATION CONSULTANT FILENMIEITtN BAN v£ : sr.ALEIrtL(: : STATUSTlNHT~: PRO.ECTIDlf AN : HANOI PILOT LIGHT METRO LINE Sectkln NOOn - HlllOI Ralway station i I CHOEl.Wnr: Tl/ VAA THVC Hll;N DIJ AN PIC-TEC-ORR-WVQ.JIM-1Ml!l'-8_2".DWa - Technical Design TU1N WONG sATBO rn1 rnlDlt::M TP HA NOi E>olil1 Nh&i- Ge Hill NOi ~ ~ SYSTRAS.A DESIGNED BYITlll£'rKE: : FORtMTIKHO eANv£ : DATEINGAY: Tm.EITtN BAN v£ : ~ HRB NHUE RIVER CROSSING '~ A.K A1 31/01110 lll1QT SONG NHUo7 ~§ "' "'"'11 2nd submission of lechnlcaldes91 H 3.Maurls -""""" !!s 1C ....10 UM•'"' H IG. Maurts -""""" CIECKED BYsoAT: Thlad-ngrnJlllnolba-IDal-.d,coplacl<r-rapmcilcad DECK - BLISTER TYPE 4 - REINF - BAR LISTHANOI METROPOUTAN RAIL TRANSPORT PROJECT BOARD q 1B ,...,, UPDATE> ~· jG. Maurie '"""""" G. Mauris i1 whole ar in part <r used far any prl4)Ca wihoU; lh8 priarwrillBn BAN ~T cAU - BLISlER L0"'-14 -COT TI-l~P - DANH MVC TI-IAN ~ 1A 31/01/10 Fi18118a111 ~· 3.Mauris ·""""" BAN OiiAN DUONG BAT 00 THI HA NOi permissiondHRB. ! • ""'"" ...... PROJECTDIRECTORIGIAMe0c IX/AN : CHIEFDESIGNERIa-io tt11eM Tii1£T KE: : Bin ve nQ' khOng auqc ph6p ar. d1o11g dllCI mQI hlrll tll)c, ml)I phln hay DRA'MNGNO.IBAN v£: SO : ~ B REVISION """ DESCRIPTION ClilEFOFDl!O IDAn bl), mil khOng o!uqc •II' .Dig~ ~IAln bin all. HRB. PIC-TEC-GRR-WVO-J04-18657-B ''""" """ NQI DUNG SO'A 001 THl~ICE ... OONIGlllETE Alain Bllchereau P.Amaud 2A
  • 143.
    ~ ~ "'18 !!! 11 i ~ii: ·~j ~n ~""' ~ --:1-:=-:] ~ I v---001 15-014 ~~ ---v@1150 ~ I!! ~ uw .!: F % !I $i !;l 8 uB r---.. ~ ~.... , ~ ~ / I- - 006 D0 ~ODS 5-012 f ~ ~ u'-------J (iilSO -' . ~ r------ SECTION B-B ~rro~~ »r=to~-111~~~-=mu~~~~-~-~-~-~ll-=T~- ~-~~-~~-~-~-~r=~ MAT CAT B-B ~ II0 SCALE : 1/10 ~=*-~~!b:::::::-!l.l=::::!-~~~~:::::::i~~='=::!:-==~-=::::!-==~·=::::!-=11=:::::!::=1 TI'LE: 1/10 I $ I / :c=J 0051------'----- n oo 1-016 n003 1-016 ~ I T I I I I I I I I I : ---:J ,.._-----<---------- 1 ~----<0 2 1 I I --::-:] f---+-"'-++l-------l----------1~~028 I D : Ht----+----------1~---l 006 1 I "'I : "' SECTION C-C M~I£~ip-c TI'LE: 1/10 t---+---t---------------4----..._----11------l Q.IENT: t---+---t---------------4----..._----11------l CHOflAuru: 3" 21/11Y11 Upda111d 2A 3004'11 2nd aubml11lon at'lechnlcal dMlgn A.K .Mowrto u..laing HRBA . K o . Mowrto P. Arnoud 1C ~8110 Upda1ad 18 2MIBl10 UPDATED A . K o . Mowrto P. Arnoud A . K . Mowrto P. Arnoud HANOI METROPOLITAN RAIL TRANSPORT PROJECT BOARD 1A 31m1110 Flr"111a» A . K JJ. Mowrto P. Arnoud BAN DI/AN llWNG sA.Ta0 THI HA NQI REVISION DATE DESCRIPTION IHIHl!BI' CllllClllBI' l>&IJ'lllllill SLrAOOI Nal.Y NQI DUNGWAfJOI HIM! IOI.! otl1t11;M1111!rl! - - - - ·- ~ - ·- 1; - ----- ---=-::::--: I~ - - - •PROJECT IMPLEMENTATION CONSULTANT 11 VAN lHl,IC HleNDI,/ AN SYSTRAS.A PROJECTDIRECTOR IGIAMaocDI/AN: Alain B~cheraau I.---- - I.---- l--- - -L-- '. '. FILE NAA1ElTtN e,l,i/£: DESIGNED BYTH1£TK£ : A. K CHECKED BYSlll.T: G. Maur1s CHIEF~IGNERCll) NHleMTH1£rK£: P. Amaud J~ ·- I SECTION A-A MAT CAT A-A $ SCALEITYLE: FORMATKHO BAN VE: A1 0 SCALE : 1/10 TI'LE: 1110 STAlUS TfNH~G : Teclmical Design DATEINGAY: 31/01/10 Thil <Rwi'ID mUll:notbe eithlrlOlrled,<q>ied«otl'lll'Wile NP'Odiacl ln wtdeah P11rtor ul8dfor•nr prupmewllhoul:.. prlor'Mltsl parmlllllonot HRB. ......My_..,.,._.......ng ..... ..,.. .... _m(llpMnt.y ....~ ...- .........~t~ '"""'" "'" """· - NOTES : --------------~ GHI CHIJ: 1. REINFORCEMENT YIELD STRENGTH: FY=420 MPA. 1. CllONG DO CHAY COACOT THEP fc=420 Mpa. 2. CONCRETE COVER: C=50 MM. 2. LdP BE TONG BAf> VS c=50 mm PROJECTIDVAN: HANOI PILOTLIGHT METRO LINE Sedian Nhon•HantiRailway S1ation TIJY£N flOONG sAr ElOTHITHIfll~M TP HANQI Elatn N~n. Ga Hi NOi mtETtNB,l,iVE: NHUE RIVER CROSSING VU'QT SONG NHUI;: DECK - BLISTER TYPE 3 - REINF BAN MAT cAu - BLISTER LO~I 3. cOrTl-llOP DRAl'l1NGNO.IBANVEso: IPIC-TEC-GRR-WVO-J04-18658-B 3A
  • 144.
    r r Total Lengthsand Weights ..~ Number of members I a.. TJpe No. Tot• ISh•pe ll01d Hk illll """" No. ltnglh Cade TJPI lll111- Shope Rn. Type T Type R ... -- BENDING DIAMETERS !mm) mm mm mm - n Lengths of standard hooks !mm) Total Weight Total Total Weight Total Diameters 6 8 10 12 14 16 18 20 22 25 28 -~ Diameter Length per unit Weight Length per unit Weight Hooks Diameters 6 I 8 I 10 12 14 I 16 I 18 20 22 I 25 001 D14 1 15 15 2515 99 2 A.ser. ~ c.m-M o.sn lml lkg/m) lkg) lml lkg/m) lkg) (Type 11 36 48 60 72 84 96 108 120 132 150 224 ION ~· .z.n·aJatr 6 0 0.222 0.00 D Frames ~= '"'-"l'll3o.......... ' 24 32 40 48 56 64 108 120 132 150 224 ~ 8 0 0.395 0.00 11... 21 "nchora%es OZA D16 1 1 1 3890 99 1 A-'J6T a.TU Cd452 Hooks (Type 1 72 96 120 144 168 192 216 240 264 300 10 0 0.617 0.00 (Type 11 0 0 0 0 0 0 0 0 0 0 0 D..........,. R ll Frames 12 41 0.888 36.26 Frames ITvne 21 0 0 0 0 0 0 0 0 0 0 ~ (Tvoo 21 0 0 0 0 0 0 0 0 0 0 0 028 D16 1 1 1 3950 99 1 """'' ....., c.2449 14 39 1.210 46.74 'nchora%es ..........,. (Type 1 72 96 120 144 168 192 216 240 264 300 16 14 1.580 21.54 R ciI 18 0 2.000 0.00 BAR DIMENSIONS Frames 0 0 0 0 0 0 0 0 0 0 003 D16 1 1 1 2860 21 2 A-1051 W35 Cdl51 )Tvoe 2) 20 0 2.470 0.00 - THE DIMENSIONS ARE GIVEN ON THE OUTSIDE FIBER OF THE REBAR (SEE BELOW) ciI 22 0 2.980 0.00 - THE TOTAL LENGTHS ARE CALCULATED ON THE BASIS OF THE CENTERLINE. 'nchora%e1 004 D16 1 1 1 2930 21 2 Adl51Mlll C"1ll51 25 0 3.850 0.00 !ISO 3766•2004 - METHOD Bl (Type 1 36 48 60 72 84 96 108 120 132 150 28 0 4.830 0.00 - THE BENDING ANGLES ARE GIVEN IN DEGREES. ff D Frames • ITvoe 21 0 0 0 0 0 0 0 0 0 0 A-fl 1-00 c.llT DsZTI EatJI F-91 J( 32 0 6.310 0.00 005 D12 1 5 5 2450 99 2 J.. 11~"7~ ~nchora%es D'IJ5" cdall" cda9I" Cl4a9I" 6'1J5" ' 36 0 7.990 0.00 (Type 1 36 48 60 72 84 96 108 120 132 150 40 0 9.860 0.00 R Frames IT••• 21 0 0 0 0 0 0 0 0 0 0 006 D12 1 15 15 1905 99 2 Adi 1""1 C..m-421 '""'...,._.,, '"''"lJ"ION ll1sU5" ·~ ll3atr .... ~ ~= '"'-"'"' . Type T Type R Total Length - Bended: 93 "nchora%e 65 65 65 65 65 65 72 80 88 100 ,tf- (Type 1 Total Length - Straight: 0 D Frames Total Length (ml: IT••• 21 0 0 0 0 0 0 0 0 0 0 93 nchora%e! Total Weight - Bended. 105 (Type 1 65 65 65 65 65 65 72 80 88 100 Total Weight - Straight 0 R Frames IT•oe 21 0 0 0 0 0 0 0 0 0 0 Total Weight (kg): 105 Mean Size Imm] GENERAL WEIGHT kg I 13.5 I I 105 I c__..,_ A•moCAD• DTP ,..,,,,.,._..,_ -·- --- ~ I CLIENT: II PROJECT IMPLEMENTATION CONSULTANT FILENMIEITtN BAN v£ : sr.ALEIrtL(: : STATUSTlNHT~: PRO.ECTIDlf AN : HANOI PILOT LIGHT METRO LINE Sectkln NOOn - HlllOI Ralway station i CHOEl.Wnr: Tl1 VAA THVC Hll;N DIJ AN Technical Design ~ ~ PIC-TEC-ORR-WVQ.JIM-1MlllMl_JIA.DWa - TU1N WONG sATBO rn1 rnlDlt::M TP HA NOi E>olil1 Nh&i- Ge Hill NOi SYSTRAS.A ~ '~ HRB DESIGNED BYITlll£'rKE: : FORtMTIKHO eANv£ : DATEINGAY: Tm.EITtN BAN v£ : NHUE RIVER CROSSING 7 ~§ "' "'"'11 2nd submission of lechnlcaldes91 H G.Maurls ........ A.K A1 31/01110 lll1QT SONG NHUo !!s 1C ....10 u~•.., H ~.Maurie ........ CIECKED BYsoAT: 1B ,...,, UPDATE> ~· IG. Mauria "·""""" HANOI METROPOUTAN RAIL TRANSPORT PROJECT BOARD Thlad-ngrnJlllnolba-IDal-.d,coplaclor-rapmcilcad DECK - BLISTER TYPE 3 - REINF - BAR LIST q G. Mauris i1 whole ar in part or used fOr any Pll4XM8 wihoU; lh8 priorwrillBn ~ 1A 31/01/10 Fi181 l8al8 ~· G.Mauria ........ BAN OiiAN DUONG BAT 00 THI HA NOi permissiondHRB. BAN ~T cAU - BLISlER L0"'-1 3 -COT TI-l~P - DANH MVC TI-IAN ! • PROJECTDIRECTORIGIAMe0c IX/AN : CHIEFDESIGNERIa-io tt11eM Tii1£T KE: : Bin ve nQ'khOng auqc ph6p ar. d1o11g dllCI mQI hlrll tll)c, ml)I phln hay DRA'MNGNO.IBAN v£ SO : ~ B REVISION "'"' DESCRIPTION ""'"" ...... ClilEFOFDl!O ,,,..., """ NQI DUNG SO'A 001 THl~ICE "" Cl(JNIGlllETE Alain Bllchereau P.Amaud IDAn bl), mil khOng o!uqc •II' .Dig~ ~IAln bin all. HRB. PIC-TEC-GRR-WVO-J04-18659-B 2A
  • 145.
    ~ ~ "'Ii! !!! 11 i ~ii: I ~ 001 15-014 V-L_@1so I!! ~ uw .!: F % !I $i !;l 8 uB LJ 004 1-016 0 J I oos 5-012 """"1-0lo LJ 003 ~ k_~Jl--1---------------------< o006 15-012 C)~ @l150 '. .)) i i I i i ~I I I : I I I I I : ~ I I I I : : I c--- I I 02A>----~, 1 -----~:---+-+--1 +-4+-----"I I I I I I I I I I I I I I I I I I 028>----~ 1 -----~ 1 -+--~:-'"' I I / / / / / / / ~) ~---1----iO06 D SECTION B-B MATCATB-B "SCALE: 1/10 TI'LI;.: 1/10 r---1 I I I '-----J~ ___J_:_..=====:;===~'l=f==:=l===t==::::::::::=====f~/~===f=============>--oost- ' 1 : : I I I I I I I I : I. I I I I I : I. ~ I I / / I / / LJ 003,.___ _ I,____.,_ _. I : / : J:j.,,,,,,,=::f:!:=tl.~E1~~::::::::!!f:;==!===§'l:~~"::J============::r--~ I I : I. I / LJoo4>--- --+-i-c~~~~.~~ 1 1 ~~:~~)-~~e-i~~/~#=f=============-- 1 I I I I I I I I I I r ::;::i,r '--11 1 , I L.-L-J I : :~1 i i '1--1---------4 SECTION C-C MATCATC-C SCALE: 1/10 TYLI;:: 1/10 I I o----+----+----------------+----....___....____. Q.IENT: o----+----+----------------+----....___....____. CHOflAuru: 3" 21/11Y11 2A 3004'11 Upda111d A. K .Mowrto LI•.laing HRB2nd aubml11lon at'lechnlcal dMlgn A.K n. Mowrto ... Arnaud 1C ~8110 18 2MIBl10 Upda111d A.K n. Mowrto ... Arnaud UPDATED A.K . Mowrto ... Arnaud HANOI METROPOLITAN RAIL TRANSPORT PROJECT BOARD 1A 31m1110 Flr"1,_., A.K ll. Mowrto P. Arnoud BAN DI/AN llWNG sA.ra0 THI HA NQI REVISION DATE DESCRIPTION IHIHl!BI' CllllCIDBI' l>&IHlllill SLrAOOI Nal.Y NQI DUNGWAfJOI HIM! IOI.! IJll1t11;M1111!rl! B -·- -··---·- - - -·- - ~-~~~-~r---- · - - - - --···---- - - ,--- ..IL 1-016 G .I 'I B •PROJECT IMPLEMENTATION CONSULTANT 11 VAN THl,IC HleN DI,/ AN SYSTRAS.A PROJECTDIRECTOR GIAMaocDI/AN: Alain B~cheraau 'C:; [ t--- 1- D16 r ~ UJ___J__J_L_L_L__L_~~~2~~__J___----l-----jQ06 D SECTION A-A LSLJ 004 LJ FILE NAA1ElTtNBAN/£: DESIGNED BYTHli;rK£ : A. K CHECKED BYSlll.T: G. Maur1s CHIEF~IGNERCll) NHleMTH1£r Ke: P. Amaud MAT CATA-A SCALETYLE: FORMAT KHO BAN VE: A1 SCALE: 1/10 TYLI; :1110 STAlUS TfNH~G : Teclmical Design DATENGAY: 31/01/10 Thil <Rwi'IDmUll:notbe eithlrlOlrled,<q>ied«otl'lll'Wile NP'Odiacl ln wtdea h P11rt orul8dfor•nr prupmewllhoul:.. prlor'Mltsl parmlllllonot HRB. ......My_..,.,._.......ng ..... ..,.. .... _m(llpMnt.y ....~ ...- .........~t~ '"""'" "'" """· - NOTES : ---------------~ GHI CHIJ: 1. REINFORCEMENT YIELD STRENGTH: FY=420 MPA. 1. CllONG DO CHAY COACOT THEP fc=420 Mpa. 2. CONCRETE COVER: C=50 MM. 2. LdPBE TONG BAf> VS c=50 mm PROJECT CVAN: HANOI PILOTLIGHT METRO LINE Sedion Nhon•HantiRailwayS1ation TIJY£NflOONG sATElOTHITHIfll~M TPHANQI ElatnN~n · Ga Hi NOi Tm.ETtNBANVE: NHUE RIVER CROSSING VU'QT SONG NHUI;: DECK - BLISTER TYPE 2 - REINF BAN MAT cAU-BLISTER LO~l 2. cOT niiOP DRAl'l1NGNO. BANV£so: IPIC-TEC-GRR-WVO-J04-18660-B 3A
  • 146.
    r r Total Lengthsand Weights .~ Number of members I a.. TJpe No. Tot• ltnglh~·pe ll01d Hk illll ".... No. Cade TJPI lll111- Shope Rn. Type T Type R BENDING DIAMETERS !mm)... -- Lengths of standard hooks !mm)mm mm mm - u Total Weight Total Total Weight Total Diameters 6 8 10 12 14 16 18 20 22 25 28 Diameter Length per unit Weight Length per unit Weight Hooks Diameters 6 I 8 I 10 12 14 I 16 I 18 20 22 I 25 001 014 I IS IS 2550 99 2 A=605 B=267-,D56 [=896-·1036 0=584-·581 "'~ lml lkg/m) lkg) lml lkg/m) lkg) (Type 11 36 48 60 72 84 96 108 120 132 150 224 MEAN o:1=9D"o:2=75"Cl3=57" 6 0 0.222 0.00 D Frames ~= '"'-.., ' (Type2) 24 32 40 48 56 64 108 120 132 150 224 fbJl 8 0 0.395 0.00 .,nchora%es 72 96 120 144 168 192 216 240 264 30002A 016 I I I 3840 99 2 A=751 B=699 [=2453 Hooks (Type 1 10 0 0.617 0.00 (Type 11 0 0 0 0 0 0 0 0 0 0 0 DCl1=101°e<2=91° ll Frames 12 39 0.888 34.84 R Frames ITvoe 21 0 0 0 0 0 0 0 0 0 0 fbJl 0 0 0 0 0 0 0 0 0 0 0 02B 016 I I I 3880 99 2 A=751 B=751 [=2443 14 38 1.210 46.28 (TYDl2) "nchora%es (Type 1 72 96 120 144 168 192 216 240 264 300 0:1=101°0:2=91° 16 14 1.580 21.41 R Frames ciI 18 0 2.000 0.00 BAR DIMENSIONS )Type2) 0 0 0 0 0 0 0 0 0 0 003 016 I I I 2860 21 2 A=1051 B=833 [=1051 20 0 2.470 0.00 - THE DIMENSIONS ARE GIVEN ON THE OUTSIDE FIBER OF THE REBAR (SEE BELOW) 22 0 2.980 0.00 ciI - THE TOTAL LENGTHS ARE CALCULATED ON THE BASIS OF THE CENTERLINE. "nchora%e1 004 016 I I I 2970 21 2 A=1051 B=937 [=1051 25 0 3.850 0.00 (ISO 3766•2004 - METHOD Bl (Type 1 36 48 60 72 84 96 108 120 132 150 4.830 - THE BENDING ANGLES ARE GIVEN IN DEGREES. ff D Frames28 0 0.00 0 0 0 0 0 0 0 0 0 0 < ' 32 0 6.310 0.00 (Type2) 005 012 I s s 2550 99 2 A=91 B=309 C=B75 D=307 E=95B F=91 ®" lo 11~~ ..nchora%e! 36 48 60 72 84 96 108 120 132 15036 0 7.990 0.00 (Type 1011=135° Ol2=72° ()13=90° Ol4=90" ()15=135° c R ' 40 0 9.860 0.00 Frames 0 0 0 0 0 0 0 0 0 0 A=91 B=262 [=344-·731 D=2fi4 E=404-·792 F=91 :ow (Type 21 006 012 I IS IS 1765 99 2 MEAN Dl1=135° Dl1=75° Ol3=90° Dl4=90" Ol5=135° ~= '"'-'''" c Type T Type R ..nchora%e 65 65 65 65 65 65 72 80 88 100Total Length - Bended: 91 ,tf- (Type 1 Total Length - Straight: D Frames0 0 0 0 0 0 0 0 0 0 0 Total Length (ml: 91 (!voe 21 nchora%e! Total Weight - Bended. 102 (Type 1 65 65 65 65 65 65 72 80 88 100 R FramesTot-al Weight- - Straight- 0 0 0 0 0 0 0 0 0 0 0 Total Weight (kg): 103 (Type 21 Mean Size Imm] GENERAL WEIGHT kg II 13.5 I I 103 I c__..,_ A•moCAD• DTP ,..,,,,.,._..,_ -- --- ~ ' CLIENT: II PROJECT IMPLEMENTATION CONSULTANT FILENMIEITtN BAN v£ : sr.ALEIrtL(: : STATUSTlNHT~: PRO.ECTIDlf AN : HANOI PILOT LIGHT METRO LINE Sectkln NOOn - HlllOI Ralway station • I CHOEl.Wnr: Tl/ VAA THVC Hll;N DIJ AN PIC-TEC-ORR-WVQ.JIM-1M91-8_2oU!Wa - Technical Design TU1N WONG sATBO rn1 rnlDlt::M TP HA NOi E>olil1 Nh&i- Ge Hill NOi !i ~ ~ SYSTRAS.A DESIGNED BYITlll£'r KE: : FORtMTIKHO eANv£ : DATEINGAY: Tm.EITtN BAN v£ : ~ HRB NHUE RIVER CROSSING '~ A.K A1 31/01110 lll1QT SONG NHUo7 ~§ "' "'"'11 2nd submission of lechnlcal des91 H 3.Maurls -""""" !!s 1C ....10 UM•'"' H IG. Maurta -""""" CIECKED BYsoAT: Thlad-ngrnJlllnolba-IDal-.d,coplacl<r-rapmcilcad DECK - BLISTER TYPE 2 - REINF - BAR LISTHANOI METROPOUTAN RAIL TRANSPORT PROJECT BOARD q 1B ,...,, UPDATE> ~· jG. Mauria '"""""" G. Mauris i1 whole ar in part <r used far any prl4)Ca wihoU; lh8 priorwrillBn BAN ~T cAU - BLISlER L0"'-1 2 -COT TI-l~P - DANH MVC TI-IAN ~ 1A 31/01/10 Fi181 l8al8 ~· 3.Mauria ·""""" BAN OiiAN DUONG BAT 00 THI HA NOi permissiondHRB. ! • ""'"" ...... PROJECTDIRECTORIGIAMe0c IX/AN : CHIEFDESIGNERIa-iott11eM Tii1£T KE: : Bin ve nQ' khOng auqc ph6p ar. d1o11g dllCI mQI hlrll tll)c, ml)! phln hay DRA'MNGNO.IBAN v£ SO : ~ B REVISION "'"' DESCRIPTION ClilEFOFDl!O IDAn bl), mil khOng o!uqc •II' oD!g ~ ~IAln bin all. HRB. PIC-TEC-GRR-WVO-J04-18661-B ''""" """ NQI DUNG SO'A 001 THl~ICE ... Cl(JNIGlllETE Alain Bllchereau P.Amaud 2A
  • 147.
    ~ ~ "' I!! Ii'! ~ !!! u11 iw .!: F % !I $i !;l 8 ~ uii: B v--'-i__.001 15-014 (iil150 1 ~ /c:::::::J 005 5-012 ~ (iil150 0006 15 012 (iil150 ~~ "--...l) I C:J 005 u@ 1-01& LJ 0 1-016 I 0 J I ~ I ~ f"'!---_ k- u 0n 11_ ~1 004 LJ 003 LJ .~ ~11 u - - - SECTION B-B MATCATB-B ·scALE: 1110 TYLl;:1/1D c:-- 1--+---+++------<- - - - - - - - --+-1Q2B c::-- 114----+------------'>-I02A SECTION C-C MATCATC-C0 SCALE: 1/10 TYLl;:1/1D o--~-+-~~+--~~~~~~~~~~~~~_._~~~...._~__......_~__. Q.IENT: o--~-+-~~+--~~~~~~~~~~~~~_._~~~...._~__......_~__. CHOflAuru: 3" 21/11Y11 Upda111d 2A 3004'11 2nd aubml11lon at'lechnlcal dMlgn A.K .Mowrto . Jalng HRBA . K n . Mourto ... Arnaud 1C ~8110 Upda1ad 18 2MIBl10 UPDATED A . K n . Mourto ... Arnaud A . K . Mowrtl ... Arnaud HANOI METROPOLITAN RAIL TRANSPORT PROJECT BOARD 1A 31m1110 Flr"111a» A . K ll. Mowrtl P. Arnoud BAN DI/AN llWNG sAra0 THI HA NQI REVISION DATE DESCRIPTION IHIHl!BI' CllllClllBI' l>&IJ"lllllill SLrAOOI Nal.Y NQI DUNGWAfJOI HIM! IOI.! otl1t11;M1111!rl! •PROJECT IMPLEMENTATION CONSULTANT 11 VAN lHIJC HleN DIJ AN SYSTRAS.A PROJECTDIRECTORIGIAMaocDI/AN: Alain B~cheraau ( FILE NAA1ElTtNBAN/£: DESIGNED BYTHli;rK£ : A. K CHECKED BYSlll.T: G. Maur1s CHIEF ~IGNERCll) NHleMTH1£r Ke: P. Amaud · - ·- - - - --.---------- --- 003 LJ SECTION A-A M~T CAT A-A SCALE TYLE: FORMATKHO BAN VE: A1 STAlUS TfNH~G : Teclmical Design DAlEINGAY: 31/01/10 Thil <Rwi'ID mUll:notbe eithlrlOlrled,<q>ied«otl'lll'Wile NP'Odiacl ln wtdeah P11rtorul8dfor•nr prupmewllhoul:.. prlor'Mltsl parmlllllonot HRB. ......My_..,.,._.......ng ..... ..,.. .... _m(llpMnt.y .... ~ ... - ........~t~,,.,, ...... HRB. SCALE: 1/10 TY L!;: 1/10 - NOTES : --------------~ GHI CHIJ: 1. REINFORCEMENT YIELD STRENGTH: FY=420 MPA. 1. CllONG DO CHAY COACOT THEP fc=420 Mpa. 2. CONCRETE COVER: C=50 MM. 2. LdP BE TONG BAf> VS c=5D mm PROJECT CVAN: HANOI PILOTLIGHT METRO LINE Sedian Nhon•HantiRailway S1ation TIJY£N flOONG sATElOTHITHIfll~M TPHANQI ElatnN~n · GaHi NOi Tm.ETtNBANVE: NHUE RIVER CROSSING VU'QT SONG NHUI;: DECK - BLISTER TYPE 1 - REINF BAN MAT cAU-BLISTER LO~l 1. c0TTHIOP DRAl'l1NGNO.' BANV£so: IPIC-TEC-GRR-WVO-J04-18662-B 3A
  • 148.
    c c c BoeType No No Toto1 IL th Shope Bendafbar marK "d of 1nea(h No eng Code Type D1mens1ons Shape "'" REBARS WEIGHT BENDING DIAMETERS Imm)size memb memb Lengths of standard hooks Imm)mm mm mm " Number of members 1 Diameters 6 B 10 12 14 16 1B 20 22 25 28 -~ Hooks Diamet-ers 6 8 10 12 14 16 18 20 22 25 001 014 1 15 15 2620 99 2 !Type 1) 36 48 60 72 84 96 108 120 132 150 224 MEAN Acier HA D ~"" one ....... BlNH ' HA ITlf lh&p Frames 24 32 40 48 56 64 108 120 132 150 224 Tot-al Total (Type 2) nchor<iges 72 96 120 144 168 192 216 240 264 300Total Unit Total Unit Hooks (Type 11A=110 B=605 (=617->101 D=102a-.a7B E=5B4 Diameter length weight weight- length weight weight 0 0 0 0 0 0 0 0 0 0 0!Type 1) 0 0:1=180° o:Z=90° 0:3=75° 0:4=57° lml (kg/ml lkg) lml lkg/m) lkg) R ~ Frames 0 0 0 0 0 0 0 0 0 0Frames 0 0 0 0 0 0 0 0 0 0 0 !Type 2) ~ 6 0 0 222 0.00 (Type 2) "'nchor<iges02A 016 1 1 1 3750 99 2 A=801 B=658 [=2358 72 96 120 144 168 192 216 240 264 300 0:1=102°()[2=89° 8 0 0.395 0 00 (Type 11 R 10 0 D.617 0.00 BAR DIMENSIONS Frames 0 0 0 0 0 0 0 0 0 0 016 1 1 1 3810 99 2 ~ 31.91 !Type 2) 028 A=801 B=713 C=2357 12 36 0.888 0!1=102°0!2=89° 14 39 1.210 47.55 - THE DIMENSIONS ARE GIVEN ON THE OUTSIDE FIBER OF THE REBAR (SEE BELOW I cl 16 13 1.580 21.11 - THE TOTAL LENGTHS ARE CALCULATED ON THE BASIS OF THE CENTERLINE '-'nchorages (ISO 3766 2004 - METHOD Bl 36 48 60 72 84 96 108 120 132 150OOJ 016 1 1 1 2870 21 2 A=10S1 B=B44 C=10S1 (Type 1) 18 0 2.000 0.00 - THE BENDING ANGLES ARE GIVEN IN DEGREES ~ 0 Frames cl 20 0 Z.4 70 0.00 !Type 2) 0 0 0 0 0 0 0 0 0 0 004 016 1 1 1 2930 21 2 A=10S1 B=90Z (=1051 22 0 2.980 0.00 0~1i '-lnchorages - (Type 1) 36 48 60 72 84 96 108 120 132 150 25 0 3.850 0 00 R Frames . ' 28 0 4 830 0.00 !Type 2) 0 0 0 0 0 0 0 0 0 0 005 012 1 5 5 2430 99 2 A=90 B=936 C=264 D=B66 E=163 F=90 "'' lo ~I/0!1=135° 0!2=90° 0!3=90° Ct:4=72° et:5=135° , tJ Medium diameter Imm) 136 lnchorages 65 65 65 65 65 65 72 80 88 100006 012 1 15 15 1585 99 2 F (Type 1) Bend bar length (m) 89 0MEAN Frames ~"" '"'....... BlNH , Straight bar length [m] 0 0 !Type 2) 0 0 0 0 0 0 0 0 0 0 A=90 B=263 [=656-•142 D=204 E=719-•303 F=90 Total length (m) 89 '-lnchorages "' (Type 1) 65 65 65 65 65 65 72 80 88 100 a1=135° a1=75° a3=90° a4=90° et:S=135° Bend bar weight lkg) 101 R Frames 0 0 0 0 0 0 0 0 0 0Straight bar weight lkgl 0 ,, !Type 2) Total weight (kg) 101 I Total weight for one member [kg) I 101 I I Total weight for all members (kg) I I ~ 101 [ Arma(AD• - OTP - Arm•CAD• - DTP - Arm•CAD• - OTP - Arm•CAD• -DTP- ~ ' CLIENT: II PROJECT IMPLEMENTATION CONSULTANT FILENMIEITtN BANv£ : sr.ALEIrtL(: : STATUSTlNHT~: PRO.ECTIDl/ #.! : HANOI PILOT LIGHT METRO LINE SectkJn NOOn - HlllOI RBlway station ~ I CHOEl.Wnr: Tl1 VAA THVC Hll;N DIJ AN PIC-TEC-ORR-WVQ.JIM-1-.S_JIA.DWa - Technical Design TU1N WONG sATBO rn1 rnlDlt::M TP HA NOi E>olil1 Nh&i- Ge Hill NOi ! ~ ~ SYSTRAS.A DESIGNED BYITlll£'rKE: : FORtMTIKHO eANv£ : DATEINGAY: Tm.EITtN BAN v£ : ~ HRB NHUE RIVER CROSSING '~ A.K A1 31/01110 lll1QT SONG NHUo7 ~§ "' "'"'11 2nd submission of lechnlcaldes91 H 3.Maurls ·"""'"" !!s 1C ....10 UM•'"' H IG. Maurta ·"""'"" CIECKED BYsoAT: Thladr-ingrnJlllnolba-IDar-.d,coplaclor-rapmcilcad DECK - BLISTER TYPE 1 - REINF - BAR LISTHANOI METROPOUTAN RAIL TRANSPORT PROJECT BOARD q 1B ,...,, UPDATE> ~· jG. Mauria "·"""'"" G. Mauris i1 whole ar in part or used for any prl4)Ca wihoU; lh8 priorwrillBn BAN ~T cAU - BLISlER L0"'-11 -COT TI-l~P - DANH MVC TI-IAN ~ 1A 31/01/10 Fi181 l8al8 ~· 3.Mauria ·"""'"" BAN OiiAN DUONG sAT00 Tiii HA N()I permissiondHRB. ! • ""'"" -· PROJECTDIRECTORIGIAMe0c IX/AN : CHIEFDESIGNERIa-iott11eM Tiii~ KE: : Bin ve nQ' khOng auqc ph6p ar. d1o11g dllCI mQI hlrll tll)c, ml)! phln hay DRA'MNGNO.IBAN v£: SO : I2A~ B REVISION ""' DESCRIPTION ClilEFOFDl!O IDAn bl), mil khOng o!uqc •II' .Dig~ ~IAln bin all. HRB. PIC-TEC-GRR-WVO-J04-18663-B "''"' "'" NQI DUNG SO'A 001 THl~ICE "" Cl(JNIGlllETE Alain Bllchereau P.Amaud
  • 149.
    - []8 2x1-016 c:J@ 1-016 c=J@1-016 I/ /, 0 D SECTION 8-B MAT CAT B-B I/ ' , ".> SCALE: 1/10 Ti'LE: 1110 - ' ~ - .' ] - "'~ 1 ' ~ ~ @ @ [] D L:J SECTION C-C M~TCATC-C SCALE: 1/10 Ti' LE: 1/10 '-~ · - ,....----- , - r-- ' - ...----- ' - ....----- ~ [=9 j,_ I ? I P4it- t I N-----11 ~ 0 (o01' 1<4:: D t I 00 4SECTION A-A M~T CAT A-A SCALE: 1/10 TYLS: 1/10 ~~ NOTES : ~~~~~~~~~~~~~~ GHI CHIJ: 1. REINFORCEMENT YIELD STRENGTH: FY=420 MPA. 1. CllONG DO CHAY COACOT THEP fc=420 Mpa. e 2. CONCRETE COVER: C=50 MM. i!'i 2. LdP BE TONG BAf> VS c=50 mm I ~r----.~.----.~~~~~~~~---,.-~.---~.--~.--~~~~~~~~~--r:===-~~~~~~~~====~=-~~...--""'="':--~~~----:-~~-r-~~.J.._~~~~~~~~~~__J~ t----+----+-------------_.____..._______, Q.IENT: • PROJECT IMPLEMENTATIONCONSULTANT FILE NAA1ElTtNBAN/£: SCALETYLE: STAlUS TfNH~G : PROJECT CVAN: HANOI PILOTLIGHT METRO LINE Sedian Nhon.HantiRailway S1atial '' I!! ~ ~I! ut i w g F % !I $i !;l 8 ~ uii: B t----+----+-------------_.____..._______, CHO flAu T1: , T1 VAN THl,IC HleN DI,/ AN PIC.rcc<;R,.....,,.,,,,..11171>1U"DWG Teclmical Design TllY£N flOONG 8>.T00llilTHIfll~M TPHANQI E!atn N~n .Ga Hi NOi 3" 21/11Y11 Upda111d 2A 3004'11 2nd aubml11lon at'lechnlcal dMlgn HRBA.K A . K 1C ~8110 Upda1ad A . K 18 2MIBl10 UPDATED 1A 31m1110 Flr"111a» A . K HANOI METROPOLITAN RAIL TRANSPORT PROJECT BOARD t----+----+---------------4-,.-.K_ __.__ _-+----l BAN DI/AN llWNG sA.rllOTHI llANQI REVISION DATE SLrAOOI Nal.Y DESCRIPTION NQI DUNGWAfJOI IHIHl!BI' HIM! CllllClllBI' IOI.! SYSTRAS.A DESIGNEDBYTH1£TK£: FORMATKHOBANVE: DAlENGAY : Tm.ETtNBANl/E: NHUE RIVER CROSSING A. K A1 31/01/10 VU'QT SONG NHUI;: CHECKED BYIS!ll.T: Thil-gm1111notbo1-1...ec1._«___ DECK- DEVIATOR TYPE1 - REINF G. Maurts :.:::~~~ul8dtor•nrprupmewllhoul._pr1cr'Mltsl BAN ~T cAU - BO CHUYl:.N HU'O'NG LO~l 1 -C0T11i~P CHIEFDESIGNERCll) NHleMlll1£rK£: ..,,..n0y _..,.,. _.,. "'ng....,""'"""- '""'iHn11ey DRAl'l1NGNO.BAN V£SO: P. Amaud .,..~ ... -..,.,..,~t~'""""'"'" """· PIC-TEC-GRR-WVO-J04-18670-B 3A PROJECTDIRECTORGIAMaocDI/AN: Alain B~cheraau
  • 150.
    Total Lengths andWeights lft"l!F.i Number of members I e.. Tohl ·~- Bmd .... ..i of ... No. ~."' Code lft" - Shope Rn. Type T Type R BENDING DIAMETERS Imm! ... - - Lengths of standard hooks (mm! Tot-al Weight Total Total Weight Total Diameters 6 B 10 12 14 16 1B 20 22 25 28 " Diameter Length per unit Weight Length per unit Weight Hooks Diameters 6 I 8 I 10 12 I 14 16 18 I 20 22 I 25 001 020 1 l l 5370 99 2 -i I, lml lkg/m) (kg) lml lkg/m) lkg) !Type 11 l6 48 60 T2 84 96 108 120 1l2 150 224 " 6 0 0.222 0.00 D Frames 24 l2 40 48 56 64ITvoe 21 108 120 1l2 150 224 8 0 O.l95 0.00 nchora%es A=3DD B=la36 [=550 0=1957 E=569 F=3DD Hooks (Type 1 T2 96 120 144 168 192 216 240 264 lOO 10 0 0.617 0.00 !Type 11 0 0 0 0 0 0 0 0 0 0 0 Dr>1=135" <>2=90° o:l=90" <>4=108° o:5=135' R ~ Frames Q 12 0 0.888 0.00 Frames ITvoe 21 0 0 0 0 0 0 0 0 0 0 ITvoe 21 0 0 0 0 0 0 0 0 0 0 0 001 016 1 8 8 2080 99 2 A=400 B=550 14 0 1.210 0.00 nchora%e (Type 1 T2 96 120 144 168 192 216 240 264 lOO 16 46 1.580 T2.l8 R Q 18 0 2.000 0.00 BAR DIMENSIONS Frames 0 0 0 0 0 0 0 0 0 0 003 016 1 8 8 1840 99 2 A=400 B=432 (Tvne 2) 20 16 2.470 39.79 - THE DIMENSIONS ARE GIVEN ON THE OUTSIDE FIBER OF THE REBAR ISEE BELOW) Q 22 0 2.980 0.00 - THE TOTAL LENGTHS ARE CALCULATED ON THE BASIS OF THE CENTERLINE. nchora%e! 04A 016 1 1 1 5310 99 2 A=60D B=l967 25 0 l.850 0.00 llSD l766•2004 - METHOD Bl (Type 1 l6 48 60 T2 84 96 108 120 1l2 150 28 0 4.8l0 0.00 - THE BENDING ANGLES ARE GIVEN IN DEGREES. ff D Frames Q ITvoe 21 0 0 0 0 0 0 0 0 0 0 l2 0 6.l10 0.00 A E 04B 016 1 1 1 5100 99 2 A=600 B=l864 nchora%e! l6 0 7.990 0.00 ., (Type 1 l6 48 60 T2 84 96 108 120 1l2 150 Q 40 0 9.860 0.00 R Frames ITvoe 21 0 0 0 0 0 0 0 0 0 0 005 016 1 2 2 2020 99 2 A=562 B=l62 Type T Type R nchora%e! Total Length - Bended: 62 ,tt- !Type 65 65 65 65 65 65 72 80 88 100 Total Length - Straight-: 0 D Frames " )Tvoe 21 0 0 0 0 0 0 0 0 0 0 Tot-.::il Length (ml 62 nchora%e! Tot-.::il Weight - Bended 112 !Type 65 65 65 65 65 65 72 80 88 100 Tot-al Weight- - Straight-· 0 R Frames 0 D 0 0 0 0 0 0 0 0 Tot-al Weight- (kg) 112 )Tvoe 21 Mean Size [mm] GENERAL WEIGHT kg I 17.1 I I 112 I c__..,_ ••m•CAD• DTP , """"*'-11P- - _..,_ ~ ~ CLIENT: 11 FILENAMET~ BAN v£ : SCALEITY'L~: STA.Ml TfNH~: • PROJECT IMPLEMENTATION CONSULTANT PROJECTIJJJ.l.l: HANOI PILOT LIGHT METRO LINE Sacllon Nhon- HlllOI Rallway 5'allan CH0auTll: Tl/VANTHl/CHleN DI/AN Technical Design ' • PIC-TEC-GRR-WV0.1134-18871-6..)ADWG - ~N WONG sAT 90 THI THI Dli:M TP HA. NOi eo.nf'li&i- Ga Hi NOi n SYSTRAS.A DESIGNEDBYITHtrK£: FORtMTIKHO BAN v£ : DA.lEINGAY: i ~ HRB Tm.EIT~BANv£: NHUE RIVER CROSSING 2A 30/04/11 2nd 11ubmi11ion of technical d81ign A.K l->.Mauril b,"'"'"' A.K A1 31/01/10 VU'O'T SONG NHUE ••~ s 1C "'"'" ,,,.,..., A.K ...... b."'"'"' CIECKED BYSoAT: " 23I08/10 "PDATE> A.K ...... ·"'"""' HANOI METROPOUTAN RAIL TRANSPORT PROJECT BOARD This drawing must not be eilher loaned, aopied orolhl!lrwi88 reproO.ioed DECK· DEVIATOR TYPE1 - REINF - BAR LIST •• G. Maurts In whDB or In part or UHd tr.,r prupomwttlDllltlll prlorwrHBn p 1A 31/01/10 Fi181 llal8 A.K F., Mauril "·"'"""' BAND~ AN SOONG sAT !JO THI HANOi permlukln<IHRB. BAN M~T CAU - BO CHUY!=:N HU'6NG L0"-11 - COT THEP- DANH L1 0. REVISION "'" """""'"' ...... ..... ........ PRO.ECTDIRECTORIGIAM00C CfJAN : CIEFCESIGNERIa-10 NICMTiii~ K£ : e•nv1 nlrkhOng ~pimp lird~ng duUlrn;il t1rt1-,rn0tlll*i toiy DRAWING NO.IBAN vi:SO : I2A~ ;l SCrAElOI ""'' NQI DUNO SCrAElOI ""'" "" Clllitil;MTIElll: Alain B6chereau P.Amaud IDir1 tJO, mi khOng ~ 8'/ d6ng j bang~ '*1 cUa HRB. PIC-TEC-GRR-WVO-J04-1B671-B 1,JC HANH
  • 151.
    ~ ~ '' I!! ~ ~I! ut iw g F % !I $i !;l 8 ~ u... B .{ I/ I I D 9 1 L- I IJ D~ c.,!. '-- - - tO~ n - ·~ [/,'. . = ' = ~ ~ ~ A~ 09 9 Dr----7 ~ SECTION C-C MATCATC-C ·scALE: 1110 TYL!;: 1/10 I I I I I L---L------1--------------4----1-----+----I Q.IENT: L---L------1--------------4----1-----+----ICHOflAuru: 3" 21/11Y11 Upda111d 2A 3(WU11 2nd aubml11lon at'lechnlcal dMlgn A.K ll.Mowrto . Jalng HRBA . K " . Mlwrtl D , ArnolJd 1C ~8110 Upda111d 18 2MIBl10 UPDATED A . K " . Mlwrtl D , ArnolJd A . K ll. Miwrto "Arnaud HANOI METROPOLITAN RAIL TRANSPORT PROJECT BOARD 1A 31m1110 Flr"111a» A . K G. Mowrtl P. Arnaud BAN DI/AN llWNG sA.Ta0 THI HA NQI REVISION DATE DESCRIPTION IHIHl!BI' CllllClllBI' l>&IHlllill SLrAOOI Nal.Y NQI DUNGWAfJOI HIM! IOI.! otl1t11;M1111!rl! '--··-~- -- - - ....-------- -,..------ -....-------- ~ --- · - - - - - - - - D I~ qt• ~ 'i ,_ ~ 11 I~ ( 1..- L- L- '--- ~ 1-- I ~ 1-- J...- ~ ---C-- I _ - 2,._ •PROJECT IMPLEMENTATION CONSULTANT 11 VAN THl,IC HleN DI,/ AN SYSTRAS.A PROJECTDIRECTORGIAMaocDI/AN: Alain B~cheraau @q~ ++-- ~ ~·~ - I ~ ,__ ,__ I FILE NAA1ElTtNBAN/£: L J.- - . - I--- ~"l L--- i.- i.-._ [.-- 1-- L.. 1- 0n4 SECTION A-A MAT CAT A-A 'SCALE : 1/10 TY L!;: 1/1 0 ~~',.__ ~~ SCALE TYLE: STAlUS TfNH~G : b ) Teclmical Design DESIGNED BYTHli;rK£: A. K FORMATKHO BAN VE: A1 DATENGAY: 31/01/10 CHECKED BYSlll.T: Thil-D mu1tnotbo 1-1...ec1._«_ __ G. Maurts 1n wto1eahP11rtorul8dfor•nrprupmewllhoul:._prkr'Mltsl 1 - - - - - - - - - - - 1 parmlllllonotHRB. CHIEF ~IGNERCll) NHleMlll1£r Ke: eon..n0y _..,.,._.,. "'na....,,""'"""- m(lljHnt.y P. Amaud .,..~ ... -..,.,..,~t~ ,,.,,..,, ..."""· - NOTES : -------------~ GHI CHIJ: 1. REINFORCEMENT YIELD STRENGTH: FY=420 MPA. 1. CllONG DO CHAY COACOT THEPfc=420 Mpa. 2. CONCRETE COVER: C=50 MM. 2. LdP BE TONG BAf> VS c=50 mm PROJECT CVAN: HANOI PILOTLIGHT METRO LINE Sedion Nhon•HantiRailway S1ation TIJY£NflOONG sATElO THITHIfll~M TPHA NQI Batn N~n · Ga Hi NOi Tm.ETtNBANVE: NHUE RIVER CROSSING VU'QT SONG NHUI;: DECK- DEVIATOR TYPE2 - REINF BAN ~T cAU • BO CHUYl:.N HU'O'NG LO~I 2 ·COT THl:.P DRAl'l1NGNO. BANV£so: IPIC-TEC-GRR-WVO-J04-18672-B 3A
  • 152.
    Total Lengths andWeights lft"l!F.i Number of members I e.. Tohl ·~- Bmd .... ..i of ... No. ~."' Code lft" - Shope Rn. Type T Type R BENDING DIAMETERS Imm! ... - - Lengths of standard hooks (mm! " Tot-al Weight Total Total Weight Total Diameters 6 B 10 12 14 16 1B 20 22 25 28 s~:::::J, Diameter Length per unit Weight Length per unit Weight Hooks Diameters 6 I 8 I 10 12 I 14 16 18 I 20 22 I 25 001 020 1 8 8 5930 99 2 lml lkg/m) (kg) lml lkg/m) lkg) !Type 11 l6 48 60 T2 84 96 108 120 1l2 150 224 MEAN 6 0 D '~" GTleJ' inw• BlNH " 0.222 0.00 Frames 24ITvoe 21 l2 40 48 56 64 108 120 1l2 150 224 8 0 O.l95 0.00 nchora%es A=3DD B=l67B [=BB7->95D 0=1905->1925 E=923->9B9 Hooks (Type 1 T2 96 120 144 168 192 216 240 264 lOO =lDO 10 0 0.617 0.00 !Type 11 0 0 0 0 0 0 0 0 0 0 0 D R ~ Frames ol·m·oMO'oMO'"'·100' oO·m'Q 12 0 0.888 0.00 Frames 1Tvoe21 0 0 0 0 0 0 0 0 0 0 ITvoe 21 0 0 0 0 0 0 0 0 0 0 0 001 016 1 8 8 2690 99 2 A=400 B=B56 14 0 1.210 0.00 nchora%e (Type 1 T2 96 120 144 168 192 216 240 264 lOO • 16 6l 1.580 99.60 R d 18 0 2.000 0.00 BAR DIMENSIONS Frames 0 0 0 0 0 0 0 0 0 0 003 016 1 8 8 2575 99 2 A=95D-·BB7 B=525 (Tvne 2) MEAN 20 47 2.470 117.18 - THE DIMENSIONS ARE GIVEN ON THE OUTSIDE FIBER OF THE REBAR ISEE BELOW) '~' CHll;l m.,, BlNH 22 0 2.980 0.00 t/=:d1 - THE TOTAL LENGTHS ARE CALCULATED ON THE BASIS OF THE CENTERLINE. nchora%e! 004 016 1 l l 2140 99 2 A=147 B=1a57 [=147 25 0 l.850 0.00 llSD l766•2004 - METHOD Bl (Type 1 l6 48 60 T2 84 96 108 120 1l2 150 0!1=135" Cl2=1l5" 28 0 4.8l0 0.00 - THE BENDING ANGLES ARE GIVEN IN DEGREES. ff D Frames Q ITvoe 21 0 0 0 0 0 0 0 0 0 0 l2 0 6.l10 0.00 A E 05A 016 1 1 1 5240 99 2 A=600 B=l932 nchora%e! l6 0 7.990 0.00 ., (Type 1 l6 48 60 T2 84 96 108 120 1l2 150 Q 40 0 9.860 0.00 R Frames ITvoe 21 0 0 0 0 0 0 0 0 0 0 DOB 016 1 1 1 5010 99 2 A=60D B=IS17 Q Type T Type R nchora%e! 006 016 1 1 1 2270 99 2 A=562 B=486 Total Length - Bended: 110 ,tt- !Type 65 65 65 65 65 65 72 80 88 100 Total Length - Straight: 0 D Frames Q " )Tvoe21 0 0 0 0 0 0 0 0 0 0 007 016 1 1 1 1980 99 2 A=562 B=l40 Tot.::il Length (ml 110 nchora%e! Tot.::il Weight - Bended 217 !Type 65 65 65 65 65 65 72 80 88 100 Tot-al Weight- - Straight· 0 R Frames 0 D 0 0 0 0 0 0 0 0 Tot-al Weight- (kg) 217 IT••e 21 Mean Size [mm] GENERAL WEIGHT kg I 17.8 I I 217 I c__..,_ ••m•CAD• DTP , """"*'-11P- - _..,_ ~ ~ CLIENT: 11 FILE NAMET~ BAN v£ : SCALEITY' L~: STA.MlTfNH~: • PROJECT IMPLEMENTATION CONSULTANT PROJECTIJJJ.l.l: HANOI PILOT LIGHT METRO LINE Sacllon Nhon- HlllOI Railway 5'allan CH0auTll: Tl/VANTHl/CHleN DI/AN Technical Design • PIC-TEC-GRR-WVO.I04-'IB873-6..)ADWG - ~N WONG sAT 90 THI THI Dli:M TP HA. NOi eo.nf'li&i- Ga Hi NOi n SYSTRAS.A i ~ HRB DESIGNEDBYITHtrK£: FORtMTIKHO BANVE : DAlEINGAY: Tm.ET~BANVE: NHUE RIVER CROSSING 2A 30/04/11 2nd 11ubmi11ion of technical deeign A.K l->.MauriB b........ A.K A1 31/01/10 VU'O'T SONG NHUE ••~ s 1C "'"'" """'""' A.K ...... b........ CIECKED BYSoAT: " 23I08/10 "PDATE> A.K ...... ........ HANOI METROPOUTAN RAIL TRANSPORT PROJECT BOARD This drawing must not be eilher loaned, aopied orOlhl!lrwi88 reproO.ioed DECK • DEVIATOR TYPE2 - REINF - BAR LIST •• G. Maurts In whDlll or In part or LIHd tr.,r prupomwttlDllltlll prlorwrllllln p 1A 31/01/1D Fi18118a111 A.K F., MauriB "·""""" BAND~ AN SOONG sAT !JO THI HA NOi permlukln<IHRB. BAN M~T CAU - BO CHUY!=:N Hlf6NG L0"-12- COT THEP- DANH L1 0. REVISION "'" """"'""' ...... ..... ........ PRO.ECT DIRECTORIGIAM 00C at,r AN : CIEFCESIGNERIa-10 NICM Tiii~ ~ : e•nv1 ..,.111101111 ~pimp lird~ng duUlrn;il tlrtllt(ft:,rnOllll*i toiy DRAWING NO. IBAN v£SO : I2A~ ;l SCrAElOI ""'' NQI DUNO SCrAElOI .... "" Clilitil;MTIElll: Alain B6chereau P.Amaud toin tJO, mi khOl'IQ ~ 8'/ "6na j tial'l(I ~ '*1 cUa HRB. PIC-TEC-GRR-WVO-J04-1B673-B 1,JC HANH
  • 153.
    ~ ~ '~ l!; n~ ~ ~ 7 i~ ! ! ti ~~~ ~ ',!! ~ n0.. 15 I I I i I I I 15 I I I I I I 1'20Clo I I I I I I I 1 11 I I I I I I 1 3B500 I !500b I 38f00 rn 4950 200C 3000 3000 1 3000 3000 3000 3000 I 3000 3000 3000 4500 4500 3000 3000 3000 I 3000 3000 3000 3000 I 3000 3000 200( 3000 3000 I 3000 3000 3000 3000 I 3000 3000 3000 4500 4500 3000 1 3000 3000 I 3000 3000 3000 3000 1 3000 3000 ~00 4950 rn z I I I I.., x y i 11111111i<:111llll S1 1-sAll SAS' SA7' SAS' ~ ~ SA3':..=.-, I~ ~r I " 1>1 I ~ I~I~ I~ ~ I~ l,sAZ: oSA8 SA9 S3 SB9 ~ ~ SB!io SB!L s~ s~ ~ ~l I":;.: I ::ilIT" ~in- 1~3' 1,-®4' I~ SB6' SB7' SB8' ~ S2 1111111111111111111 ~ ·~1111u. PHANElOANSO CHAINAGE Lytrlnh 0 ~ i~1~·H-TAi A 1 TOP BLlstER B~ NEOfllNH CHAINAGEAT LY TRINH TAI BOTTOM BLISTER Bl;: NEOflAY LEGEND GHICHO ~ 43A = ES1 0 0 ~ I I ~ "'""" @ ...PASSIVE END ElAU THl,IflQNG <l:1llACTIVE STRESSING END ElAU TAO (ING SUAT CHOflQNG SA9' SAS' 80 80 5! ~ SA7' SA6' SA5' SA4' SA3' SA2' SA1' 0 8 80 0 8 80 80 80 0 8 :,!! ~ N N II) N QO N ;;; ..... "' ~I ~I0 ~ 0 ~ 0 ~ 0 ~ N .....N """N 0 "" ~ ~J~j t----+----+--------------+----t--------t CLIENT: 1----+----+--------------+---1----+-----1 CHOEIAUnr: 2A 3MJ.1111 2nd .subml111lon ofl&dinlcaldea9'1 A. K L LJ PS1 SA1 SA2 SA3 8 ~I ~1 0 8 8 88 0 0 0 !:; g!! ~ "' ~ ~ f(!!..... ~I 0 ~QO ..... I 0 0 0 ~ 11! 11!CD "' &!J..... ..... I I I HRB = L LJ SA4 SA5 SA6 SA7 SAS SA9 S3 SB9 sea SB7 SB6 SB5 SB4 SB3 SB2 SB1 PS2 SB1' SB2' SB3' SB4' SB5' SB6' 587' SB8' SB9' ES2 il~lo 8 0 0 0 0 0 0 0 0 8 ~8 8 8 8 8 0 0 8 8 8 8 8 8 8 8 0 8 8 8 8 8 8 8 88 8 8 ~~~ ~ ~0 0 0 0 0 0 0 0 0 0 0 0 0 - :!: """ 0 "' CD "' N :i8 :8 CD C2> ~ 0 N le ~ CD ~ Si ~ ~ :§! "' 5? 5? 5! 5! - - ~ ~ ~ ~ ~ ~ """ """ "' - - - ml II ~I II I I 0 0 0 0 0 I 0 0 0 0 0 0 0 0 0 0 0 QO QO QO 00 N 11! ~ 11! 11! ~ ~ ~ ~ ~ ~ ~ "" ~ 12 8 ~-i8 lH u; ..... """ 0 "' CD en N I() - - ~CD """ QO QO 00 00 "' a> - - -I 34 L@L® ® @ ®J@j 34 I I li ~ ~ l @@ 448 II LONGITUDINAL ELEVATION MAT CAT DOC • SCALE : 1/200 TYLS: 11200 NOTES:~~~~~~~~~~~~~~~~~~~~~~~~~~~~~~~~~~~~~~~~~~~~~~~~ GHICHO -ALL DIMENSIONS ARE IN MILLIMETERS. TATcA cAc KICH THllOC THEOflON VI MM. - FOR GENERAL NOTES REFER SEPARATE DRAWING. flOI VO'! cN:; GHI CHO CHUNG, THAM KHAO BAN VE RU:NG - FOR DETAILS OF BLISTERS REFER CONCRETE OUTLINE DRAWINGS. flOI VO'! CHI ni;T COA BLISTERS, THAM KHAo cAc BANVE ~T BANG - FOR TENDON PLAN VIEW AND ELEVATION LAYOUT REFER TO PIC-TEc-GST-WVO-J00-16401-B &PIC-TEC-GST-WVO-J00-16407-B. flOI VO'!Ml!T BANGVAMl!T ElO'NG COA TAO cAPXIN HAYTHAM KHAOPIC-TEC-GST-WVO-JOIH8401-6 & PIC-TEC-GST-WVO-JOIH 8407-B. - FOR TENDONS SETTING OUT REFER TO PRESTRESSING CROSS-SECTION DRAWING PIC-TEC-GST-WVO.J00-18410-B & PIC-TEC-GST-WVO-J00-16419-B. vev;ec BO TRI cACTAO cAP XIN HAY THAM KHAO BAN ve cAT NGANG(ING SUAT PIC-TEC-GST-WVQ..JOIH841D.a & PIC-TEC-GST-WVQ..J0().18419-8. - FOR PRESTRESSING DETAILS AND SEQUENCES REFER TO PIC-TEC-GST-WVO-J00-16408-B. fl01 VOi cN:; CHI Ti£TVA cAc CHUOl liNG suAT XIN HAY THAM KHAO PIC-TEC-GST-WVQ..J0().18408-8. - FOR METHOD OF CONSTRUCTION AND SEQUENCES REFER TOPIC-TEC-GCM-WVO-J00-18011-B & PIC-TEC-GCM-WVO-J00-18013-B. fl01 VOi PHllONG PHAP THI CONGVAcN:; TRINH TIJ, XEM BAo cAo PIC-TEC-OCM-WVQ..J00-18D11-B & PIC-TEC-OCM-WVQ..J00-18013-B. PROJECT IMPLEMENTATION CONSULTANT lVVJN THVC Hl~N DIJ AN ALENMIEITtN BAN'IE: STATUSll1NHT~: Technical Deeign PRO.ECTI Dll AN : HANOI PILOTUGKT METROLINE Sadlon Nhon-Hrml RalwaySbl!lan ru~N WONG sAT00 THI THID1£MTP HANOi Eo911 Nh&i-Ge H~ NOi SYSTRAS.A DESIGNED BYTll1£r~ : A. K FORIMTI~BAN v£ : A1 DATEINGAY: 31/01110 TITlflrtNBANv£: NHUE RIVER CROSSING WQ'T SONG NHUI;: 1C 2Mllltl0 u 1lld 18 ZW&"IO UPDATED A. K 1--"'---t="'-="-+~=------------+A."'K"'----F'-"==-+""=""--i HANOI METROPOLITAN RAIL TRANSPORT PROJECT BOARD DECK - PT - READY RECKONER BAN M.!<T cAU - PT - BANG TfNH sAN 1A 3UJ1110 Fim-. REVISION OATE DESCRIPTION SC/ADO! NGA.Y NQI CUNG SO'A DOI A. K BAN DI/ANDUONG BAT DO lHIHAN(ll DelllNEDl!Y 1111trK£ IH!llEDl!Y 1111.r PROJECTDIRECTORIGIANElOcD./AN : ORA'MNGNO.BAN'IE SO : Alain B'9chereau PIC-TEC-GST-WVO-J04-18400-B 2A
  • 154.
    , ----1 y II 51 SA6' SA5' X=33500 10 Y=3560 X=32485 10 Y=3511 X=3050 11 Y=1640 X=29485 11 Y=1689 SA4' X=33500 Y=3320 B X=33500 6 X=33500 4 >---------~ Y=3080 Y=2840 X=32485 Y=3271 8 X=32485 6 Y=3031 X=30500 9 Y=1880 X=29485 9 Y=1929 SA3' X=30500 Y=2120 7 X=29485 Y=2169 7 X=32485 4 >-------~ Y=2791 X=3050~ Y=2380 v X=29485 Y=2409 5 SA2 SA1' X=37720 2 Y=2616 X=37421 ~ Y=2446 ""'/ = = g,.,., a: "' - L=~~~1±=~: : ES1 SA9' SA8' SA7' __,•..,..__.,x... - - - - l _ _ _ _____________ _______ ____ . _ _ _ - - - - - - - - - - - - - - · -4- - - - - · - ~ ~ 495 0 I 2000 3000 3000 3000 3000 - - - · - - - - --------- - - - - · - - - r - - - - - - ---+--~--~---+- - - - ---1·--__..·-- ·-----W-- - -+-- D 0 0 END OF CABLE QWcAP START OF CURVE DAU DllONG CONG END OF CURVE CUOI DI/ONG CONG X=10000 10 Y=2600 X=13000 9 Y=2600 HALF TOP PLAN VIEW NO'A MAT BANG TR~N SCALE: 1/50 TY Li;:: 1150 X=16000 8 Y=2600 (SHOWING CANTILEVER TENDONS 1 TO 11 ONLY FOR CLARITY} (TH~ Hll;N cAP HANG 1a~N11 CHI a~ LAM RO) 11 10 9 'It ~8LI)- -' 'It ~a N- -'II II )( N II II )( N 0 0 0 X=19000 Y=2600 7 0 3000 8500 0 g - gLI) gU) gcc0 ~ 8 - ~ ~ - - - § - 8 l'i • ' z I ~ LEGEND GHICHO _.... PASSIVE ANCHORAGE NEOBID0NG ~ ACTIVE ANCHORAGE NEOCHODQNG ~! 1 S1 0 8;:! ---' ~,!!i 10 1----+----0--------------+-------o----t CLIENT: t----+-----1--------------+---+-----1-----t CH09AUTLI: " SA8' 9 0 ~ Oi --;- II II )( N 9 o r ;;; g SA7' 0 ~ie--;- II II XN 8 ::0 "'g SA6' , 7 0 8cco CC .,..-;- II II XN 7 LONGITUDINAL ELEVATION MAT CAT DOC HRB SCALE: 1/50 ri' LI~: 1/50 II PROJECT IMPLEMENTATION CONSULTANT lV VAN THIJC HIEN DIJ AN SYSTRAS.A PROJECT DIRECTORIGIAM!lOcDI./AN: Alain B6chereau 3000 X=25000 5 Y=2800 X=28514 11 X=28514 9 Y=1739 Y=1979 X=2998 11 X=29986 g Y=1657 Y=1897 X=31514 10 X=3151 8 Y=3461 Y=3221 3000 X=28000 4 Y=2600 X=28514 7 Y=2219 X=2851 5 Y=2459 3000 X=29986 7 Y=2137 X=29 5Y=2377 r - - - - 0 88 - U) ~~ 3 X=31514 6 X=31514 4 >----------~ Y=2981 Y=2741 3000 4500 2 X=37252 Y=2615 1 X=36814 Y=2452 X=32986 10 X=329 B X=32986 6 X=32986 4V=3543 Y=3303 Y=3063 Y=2823 >-------------~ II II )( N 6 6 (ljC'l -o (li-;- 11 II >< N FILE NMIEITtNBANvE: DESIGNED BYTlll"1~ : A. K CHECl<EDBYsoAT: G. Mauris II II XN 5 CHIEFDESIGl'ERICHOttila,I THI~ Kt : P. Amaud FORIMTIKl() BANv£: A1 II II )( N 4 0 8N 4 'It ~s ~"7 II II )( N STATUS lT1NH ~ : Technical Design DAlEINGAY: 31/01/10 ThLldlawl1111 rru11tnct i. .....-mi..t,~ i:r~ ~ ii whole or in part orUlldfor anr p.,.,._wthcU lh9pricrwrillln permiHionofHRS. 0 ~~.., ' II 11 X N (3J §:a Pl";" II 11 >< N 3 3 ~(!; ~"7 II II XN 2 2 0 0 ~ ~C'l C'l 1 2 NOTE:------------~ GHICHO: - ALL DIMENSIONS ARE IN MILLIMETERS. TAT cA cAC KICH THllO'c THEOOON MM. PROJECTDlfAN : HANOI PILOTUGKT METRO LINE Sadlon Nhon- Hanoi RalwaySlatlon TUrtNEllJOt.lG sAT00 THI THIElltMTP HANQI Eoftl Nh&i-Ge H~ NOi TITLEl'ltNBAN1£: NHUE RIVER CROSSING WQ'T SONG NHUI;: DECK- PT- PLAN VIEW & ELEVATION - 1/7 BAN M.!<T cAU - PT - M.!<T BANG & M.!<T ElO'NG - 1J7 Mn ...... ......O..,._ oo) ............ ..... ... ..,.,,mOI........ DRAWINGNO.BANvESO: .... ~ ... -O..,... ~f....*'*'""'"""· PIC-TEC-GST-WVO-J04-18401-B 2A
  • 155.
    - - -- - - - - - - - - - - < 4 X=44014 6 X=44014 Y=2823 Y=3063 - - - - - - ----< 4 X=45486 6 X=45486 Y=2741 Y=2981 a X=44014 10 X=44014 Y=3303 Y=3543 8 =45486 10 ~=~Y=3221 I~.D.. U.0<(10....U>G ~ 2 X=39748 - - --< 5 X=47014 7 X=47014 9 X=47014 11 X=47014 -U !:!:b- Y=2615 Y=2377 Y=2137 Y=1897 Y=1657 ~~·~ 1 X=40186 5 X=48486 X=48486 X=46486 X=48486 _i-+-------<-~'"-+-Y-·;~ 4 ~ 52 --~+----~----~~-~-+---~~-....~:_t-+-~----~_..___i____~i/+--~~=-~-+-9----~7-y_=-~~2~19__;_.._~~=-19_'~~9~- 1 - 1 _i~=-1_7-39----~~~-m-+---~+----~------1-i-+---~~--~-+-~----~+----i-----~-+-1-+-----~--m-+-__~_..___i_____~-+------~--·~... , ~ = = = = ! • I ! fi g I ~51~---~$*~~+=1~----1---J~ ,, I I 3 " - 4 - 8 ! 8 - 9 _o ~·--t---i ~ ~ I I ,~ SA1 SA2 g SA3 SA4 SA5 SA6 SA7 SA8 SA9 S3 I ! 4500 3000 3000 3000 3000 3000 3000 3000 30 00 3000 20~ D 0 0 END OF CABLE aAUcAP START OF CURVE aAU fll10NG CONG END OF CURVE CUOI EJU'O'NG CONG LEGEND GH~O PASSIVE ANCHORAGE NEOBIEl0NG --q ACTIVE ANCHORAGE NEOCHi)flONG 17252 !615 !__ ' '1"-X=39579 "-/1'=2446 2 X=39280 Y=2616 2 &! .... ~~ .... ' II II )( N 2 88cg co 1f )ll >< >- 0 4 X=49000 Y=2800 5 X=47515 7 X=47515 g X=47515 11 X=47515 Y=2409 Y=2169 Y=1929 Y=1689 I ~ X=46500 X=46500 X=46500 X=46500 ~Y=2380 7 Y=2120 9 Y=1880 11 Y=1640 ~---------j 4 X=44515 r6J X=44515 r6J X=44515 r1QI X=44515 Y=2791 v Y=3031 v Y=3271 v Y=3511 4 X=43500 r6J X=43500 r6J X=43500 r1QI X=43500 ~------------j Y=2840 v Y=3080 v Y=3320 v Y=3560 3 C> C> ~ s ........ ' II 11 XN §!!.l ~'? II II XN 0 4 C> ~«; .......II 11 XN C> §~.... ..,, II 11 XN 4 3250 ' 6 X=55000 Y=2600 o----+------------------+----+--->-------< CLIENT: 1----+---+---------------+---+---t------l CH09AUTLI: II PROJECT IMPLEMENTATION CONSULTANT lV VAN THIJC HIEN DIJ AN SYSTRAS.A 2A 30IGl/11 2nd •ubml11lon oflllchnlcald-.,, A. K HRB 1C 25108110 U 1lld A. K l--""' 18'--IF23/08/1='-" 0 -+"'uPDA=JED"-------------+A"'.K-'----+=~-=~--i HANOI METROPOLITAN RAIL TRANSPORT PROJECT BOARD 1A 31/01/10 Fir.t-. A. K BAN DI/ANfllJONG llATflO THI ~ NQI REVISION DATE DESCRIP'TlON -l'fSCIASOI NGAY NQI DlolG 80'AOOI Hilt PROJECT DIRECTORIGIAM!lOcDI./AA: Alain B6chereau I X=640009 Y=2600 10 X=67000 Y=2600 11 X=70000 Y=2600 HALF TOP PLAN VIEW NO'A M~T BANG TREN SCALE: 1/50 Ti'LI;.: 1/50 (SHOWING CANTILEVER TENDONS 1 TO 11 ONLY FOR CLARITY) {THi; Hil;.N cAP HANG I ei;N 11 CHI EJ!; LAM RO) 9 C> g ......., C) CD";" II II >< N LONGITUDINAL ELEVATION M~TCATDQC FILE NMIEITtNBAN~: DESIGNED BYTllli;r~ : A. K CHECl<ED BYsoAT : G. Mauris SCALE: 1/50 TYL~: 1/50 FORIMTIKf() BANv£: A1 STATIJS lT1NH~: Technical Design DAlENGAY: 31/01110 ThLldlawl1111rru11tncti......-mi..t,~ i:r~~ ii whole or in part orUlldforanrp.,.,._wthcU lh9pricrwrillln permiHionofHRS. CHIEFDESIGl'ERI CHONHla,I THI~ Kt : Mn ..........O..,._oo) ................. ... ..,.,,mOI........ P. Amaud .... ~ ...-0..,...~f'*<i*'*'""' """· 10 C> C> .... gr-. r.o";" II II )( N 11 C> C> ii! al .....cg ' II 11 XN 11 NOTE: ------------~ GHICHO: - ALL DIMENSIONS ARE IN MILLIMETERS. TAT cAcAC KICH THU'O'c THEOEJON MM. PRO.ECTDlfm: HANOI PILOTUGKT METRO LINE Sadlon Nhon- Hanoi RalwaySlatlon TimN EJIJOt.lG sAT00 THITHIEJltM TP HANOi Eoftl Nh&i-Ge H~ NOi TITLE'ltNBAN1£: NHUE RIVER CROSSING WQ'T SONG NHUI;: DECK- PT- PLAN VIEW & ELEVATION - 217 BAN M.!<T cAU - PT - M.!<T BANG & M.!<T ElO'NG - 2 / 7 ORAWING NO. BAN~SO: PIC-TEC-GST-WVO-J04-18402-B 2A
  • 156.
    2 ~a ............ 00 ;:!;::: 'ii''il' 'ii''il' x>- x >- ~ og l ~ ~ 8 i! i 8 ~ ~ i! ~~o ie 0..., 0 ..., ..,. "' QCJ QCJ ~ c;;.... .... .... .... .... ~ ' ~ ;_g ~ ill L -~' ~ ill ll F H~' II"'"""' I ~ = =SA4' SA3' SA2' = SA , - - · · - - - · - - - · · - - - · · - - · · - - - · · -1---··- 1--1---·· D 0 0 ILEGEND GHICHO END OF CABLE flAucN> START OF CURVE flAu Ell/ONG CONG END OF CURVE CUOI fll/O'NG CONG _.... PASSIVE ANCHORAGE NE0Blfl0NG ---$® ACTIVE ANCHORAGE NEO CHO flQNG 300 0 SA4' I 3000 I if:::: co !lilNCA o~ @] 0 8 8 i!.... "' 0 0 C') ~ ~ ~ ~ SA3' i! .... !:l i8..... II II XN 22 o----+------------------+----+--->-------< CUENT: 1----+---+---------------+---+---t------l CH09AUTLI: 2A 30IGl/11 2nd •ubml11lon oflllchnlcald-.,, A. K 3000 I ~ if::::-wco- NCA o~ 21 -< x -< xII II II II co~ Nto> 0 .... co"' o- ~!!3 N- "'22 22 22 00 co 00 ['.;~ ..., ' II 11 XN 80 ~ i! .... ~ig C') ' II II CD XN a;.... ""~ 21 ~rt!. 22 HRB 30 )0 -< xII II NCA -N NUI ~N co 22 .... ""o ~~ II II XN 21 1C 25108110 18 23/08/10 U ~ A.K 1--=--F= '"'--+""'uPDA= JED"--------------+A"'.K"'"----+=~-=~---i HANOI METROPOLITAN RAIL TRANSPORT PROJECT BOARD 1A 31/01/10 REVISION DATE SCIASOI NGAY Fir.t - . A. K BAN DI/ANflOONG llATflO THIHhQI OESCRIP'TlON NQIOIMG SO'AOOI -l'f!Elt 1 2 f.'lj .... ~8i~ ll.. ~·a QN 'ii''il''ii'~ z~ X>- X >- CIJU 0:: c.. ~ ~~ !!di?ll..1- 8 ! ~ 8 ~ 8 ~ 8 80 0 IQ 0 0 !:i ~ l'll :; ~I I"' "'g 80 !:i 0 =0 = I -<XII II co !:,l co"' ~!!3 21 21 ~~ ~~ II 11 XN II · - - - · · - - - ·· r - - ::-1'.S.J_I__- -- - 4500 I 4500 HALF BOTTOM PLAN VIEW MOT NO'A MAT BANG fJAY 80 ~ SCALE: 1/50 Ti' LI;: 1/50 ~I~~en lo::c.. ~~~~ 8IQ l'll +1 80 :; LONGITUDINAL ELEVATION MAT CAT DOC SCALE: 1/50 T'i'LI;:: 1/50 PROJECT IMPLEMENTATION CONSULTANT lV VAN THIJC HIENDIJ AN SYSTRAS.A FILE NMIEITtNBANvE: DESIGNED BYTlll"1~ : A. K CHECl<EDBYsoAT: G. Mauris 80 ~ PROJECT DIRECTORIGIAM!lOcDI./AA: CHIEFDESIGl'ERICHOttila,I THI~ Kt : Alain B6chereau P. Amaud 1 2 2 ..., .... ig ..., !ll Si .... .... !ll Si...,CD ~~ lt'>O CO CD lii x >- l~ X >- l 'il' X>- lii x >- 8 i! ~ 8 ~ i! ~ 8 ~ ~ [ 8 ~ ~ i 80..., 0 ..., 0 0 0 ~ ~ ~ ~ ~ ~ :li" !il ' ~ ~ = = "" ~~rn Jro - g/ ,.....1' ~ ~I I g i a: SA1 SA2 SA3 SA4 I - ~ -<X ~ ! -< x ~! N CA OCA .... .... ~~N- "'22 21 FORIMTIKl() BANv£: A1 30 JO -< x ~!_.... _. UI ~N "'22 21 ..., i!!o ..,. "'..,. '? II II XN I ~£ ~~ 21 -< x ~JI. om ON N ljl 22 22 STATUS lT1NH ~ : Technical Design DAlENGAY: 31/01110 ThLl dlawl1111 rru11tnct i. .....-mi..t,~ i:r~ ~ ii whole or in part orUlldforanrp.,.,._wthcU lh9pricrwrillln permiHionofHRS. Mn ..... .....O..,._ oo) .......... ..... ... ..,.,,mOI........ .... ~ ...-o..,..,ID"llt '*"* ...""'"""· 3000 22 .... 11; ... i-.. IO ..,. <? II II XN ~£ ~~ 22 0 ~ .... ~~ II II X N 22 I 3000 I 3000 NOTE:------------~ GHICHO: - ALL DIMENSIONS ARE IN MILLIMETERS. TAT cA cAC KICH THU'Oc THEO flO'N V MM. PRO.ECTDlfm: HANOI PILOTUGKT METRO LINE Sadlon Nhon- Hanoi RalwaySlatlon TimNEllJOt.lG s.l.T00 THI THIElltMTP HANQI Eloftl Nh&i· Ge H~ NOi TITLEl'ltNBANvE: NHUE RIVER CROSSING WQ'T SONG NHUI;: DECK- PT- PLAN VIEW & ELEVATION - 3 / 7 BAN M.!<T cAU - PT - M.!<T BANG & M.!<T ElO'NG - 31 7 DRAWINGNO.BAN~SO: PIC-TEC-GST-WVO-J04-18403-B 2A
  • 157.
    2 3 1 -~ - ---~s 4500I 51 53 52 a: 53 52 ~~ !Em 15(1) cYi ~ ~ [gmo Q'.11. Cf)~ tot)~_(.)!:!:!::> II 11 II II ~~ D.f: XN XN - 18 ~ 80 LO l$! ~ l$! =0 0 8 ~ 4500 80 ~ 51 0 :5!ij! -......... 'II 11 XN ~ I I 51 8LOco O> ~tt? II II XN ~ ~ -~I 53 -< )( II Jl. ~ 8l 8l8 ~ 8 0 I~~ ..... ill SA1 SA2 3000 I 3000 I 52 52 53 53 Oco oO> o..._ :ii!"""o~ Oo g~:8- co~ ~";- .....";- !;;:~ ..... ";- II 11 II 11 II 11 II II XN )( N XN )( N i ~ ~ ~ :ii! ~ 8 ~ ~ :ii! ~ s ~ 0 ~ ~ ~..... ~ ~ "" -·I "' crt .____________ ~_ ( '----------6 I~ [51 N ~ ~ .._ ;;:; 52 53 -" ,_, 1s1 ~ 0 - = ==- I - 8 co 8 _8 I o""" o """ gi ..... ;g ~..,_M ,._ 8l ~ ~ ~C!i ~l'l"';" P') ,M II 11 II 11 II ~ M";- -'XNX NX II II II ~ 52 a )( N X 53 5352 D END OF CABLE E>Au cAP 0 START OF CURVE E>Au E>llONG CONG 0 END OF CURVE CUOI ElU'¢'NG CONG -(,0:/ O:'/ 8..,.. 0 SoN:8~. -t!: i!I:~ """'II II )( N 51 51 ..j- SA1~ ~ r- a: 8 CD Oco NCO o~ ~~ ~";- i!I:~ II 11 XN 52 52 LEGEND GH~O PASSIVE ANCHORAGE NEO Bl E>()NG --fl ACTIVE ANCHORAGE NEOCHOOQNG o----+------------------+----+--->------< CLIENT: 1----+---+---------------+---+---t------l CH09AUTLI: 2A 30IGl/11 2nd •ubml11lon oflllchnlcald-.,, A. K ]---,__ ~ ) ~ "',,_ l$! O> o..._ coN ~~ ~~ ~"7 i!I:~ II II )( N 53 53 HRB ~ 0 0 0 ;:"() SA3 3000 ~ 80 ;:"() SA3 0 § LO ~ 0 ~ co M f(j f(j 0 0 ~ 0 0 co 0 0 M :;i!u; u; CD LI--~] fL.L__[-~] ([J t[ I ffi I ~ :ii!M f(j ~ SA5 SM SAS SA7 3000 I 3000 I 3000 I 3000 ~ SA4 32500 HALF BOTTOM PLAN VIEW MOT NO'A M~T BANG DAY SCALE: 1/50 ti' Le: 1150 (SHOWING CONTINUITY TENDONS AT MID SPAN:- 51 TO 530NLY FOR CLARITY) (CHI RA cAP O'NG SuAT TRU'O'c ui;N Tl,IC T~I NHIP GIO'A: -61 TI)I 53 CHIei; LAM RO) 8 ~ ~ 8 ~ ~ ~ 8 ~ 8 :ii! ~ 80 0 0 0 M 0 1; is ill lll ~ u; i2 ~ SA5 SAS SA7 - ~ l ~ '-- - -, ~ ~ 0 co !ii Jrn I ~ :ii!M ~ I ------, ) --------, ,J --------. ~ ~ ,J I r II LONGITUDINAL ELEVATION M~TCATDOC PROJECT IMPLEMENTATION CONSULTANT lV VAN THIJC Hl~N DIJ AN SYSTRAS.A SCALE: 1150 TY Le: 1150 FILE NMIEITtNBANvE: DESIGNED BYTlll"1~ : A. K FORIMTIKf() BANv£: A1 STATUS lT1NH~: Technical Design DAlENGAY: 31/01110 1C 25108110 U 1lld A. K l--""' 18'--IF23/08/1=""0 -+"'uPDA=JED"--------------+A"'.K"'-----+=~-=~--i HANOIMETROPOLITAN RAILTRANSPORT PROJECT BOARD CHECl<ED BYsoAT : G. Mauris ThLl dlawl1111rru11tncti......-mi..t,~i:r~~ ii whole or in part orUlldfor anr p.,.,._wthcU lh9pricrwrillln permiHionofHRS. 1A 31/01/10 Fir.t-. A. K BAN DI/ANDIKING llATflO THI ~ NQI REVISION DATE OESCRIP'TlON -l'fSCIASOI NGAY NQI OlolG 80'AOOI Hilt Mn ...........O..,._oo) ................ ... ..,.,,mOI........ ....~ ...-o..,..,ID"llf'*<i*'*'""'"""· PROJECT DIRECTORIGIAM!lOcIll./AN: Alain B6chereau CHIEFDESIGNERICHONHla,I THI~ Kt : P. Amaud ~~ i 0 ~ 0 ~ ~ 0 0 0 0 ~ :ii! 0 CD CD ;::: --1 __ J J I I I I I SA8 SA9 S3 l_J3000 I 3000 I 20100 I ~ 8 ~ 8 i ~ 80 0 0 l8 :8 ;::: -- --, ==d SA8 SA9 S3 - I I I I I- ' -- --i NOTE:- - - - - - - - - - - -- GHI ~~LL DIMENSIONS ARE IN MILLIMETERS. TAT cA cAC KICH THU'(Jc THEOE>ON V MM. PRO.ECTDlfm: HANOI PILOTUGKT METRO LINE Sadlon Nhon- Hanoi RalwaySlatlon TimN EllJOt.lG sAT00 THI THIElltMTPHANOi Eoftl Nh&i-Ge H~ NOi TITLEl'ltNBAN1£: NHUE RIVER CROSSING WQ'T SONG NHUI;: DECK- PT- PLAN VIEW & ELEVATION - 4 / 7 BAN M.!<T cAU - PT - M.!<T BANG & M.!<T ElO'NG - 417 DRAWINGNO.BANvESO: PIC-TEC-GST-WVO-J04-18404-B 2A
  • 159.
    ~ :i: '~ !'; nt If~ 7 ii!~ ! ~i !i! t~ I ~ ~ n0.. D END OF CABLE E>AUcAP 0 START OF CURVE f>AU E>OONG CONG 0 END OF CURVE CUOI E>l10NG CONG LEGEND GH.:.;(J PASSIVE ANCHORAGE NEOBIE>QNG ---'*'® ACTIVE ANCHORAGE NEO CHO E>ONG f?l...... a. < . u..o·:J O&l(.) z..- (/)(.) a:ll. -:::> w=> ~~ a:~0 0 ~ PS1 0 0 0 ...... .... X=64380 31 ~=lir~~::~::ORCLAR-ITY-cSA2--=i--SA3----r=SA4--~r-SA5-- ~·--SA6-___ I _SA_7_. Y= 1786 1m~=:~~~At----t___:SA9~-;=~~----t---=-~ cAP so 31 CHI a£ LAM RO - · ·---· · - - - - - - ---·J'-· ·--- ·--- ---· ·-------· ,~r--~x~~---· JY=1953 X=58380 · - - - - - - - · -t--· .-----i SA7 SA8 SA9 I I~~~~00 -cSA2-]~-I~~I~-A~~~~~~-~r~r--T~CHI RA MAT BANG JJ.;ii; CABLE NO. 33 ONLY FOR CLARITY cAPS033CHTa£LAMR0 _ ·- - - - - -·- - ·-- J'- ___ ______ I ~ _j__JN g ----'1- ·· - - - - - - - · X=55380 34 Y=1724 PLAN VIEW SHOWING -·c;·--·=r·----i=--.r:-:-CHT RA MAT BANG CABLE 1'.10. 34 ONLY FOR CLARITY SA2 SA3 SA4 cAPS034CHTa£LAMR0 - - - - - - - - - - -- J'- PLAN VIEW SHOWING CHI RA MAT BANG CABLE 1'.10. 37 ONLY FOR CLARITY cAP SO 37 CHI a£ LAM RO L-"'===-:-::=~~=::'.l N .... 0 0 ~ .... 0 0 0 ~ 0 0 ~ 0 a ~ SA6 0 0 ~ · - - - - - - - · SA7 - - - - - - - · SA7 · - - - · SA8 SA8 SA8 0 0 !8 -t-· SA9 ----'1- ~- ----'1- · ----'1- · 0 0 m S3 53 0 0 a j!: .-----i I I I ___J I I I __J . -----, I I ___J --- 1 ~-------~==~========gr~~~~~;;~~~~~~-~-~-~-~-~-~~~~~~~~~~~~~-~-~-~-~-~-~~~~~~~~~~~~~~~~~~~-~-~-~-~-~-~-~~~~~~~~~~~~~~---1 SA1 SA3 SA4 SA5 SA6 SA7 SA8 SA9 S3 I I I I I -----·--~------------~-----------~-------~-------~-------~-------~-------~-------~-------~-------~-------~-------~--~__J 4500 4500 30 00 1----+----0--------------+-------o----t CLIENT: t----+-----1--------------+---+----1----t CH09AUTLI: 2A 30I04/11 2nd aubmi11ion ofledinicaldllil9iun A. K 1D 01110/10 Updatlld A. K 3000 HRB 3000 3000 3000 32500 HALF BOTTOM PLAN VIEW MOT NO'A M~T BANG fJAY SCALE: 1/50 TI"t..e: 1/50 (SHOWING CONTINUITY TENDONS AT MID SPAN:-31 TO 370NLY FOR CLARITY) (CHI RA cAP l'.rNGSuAT TROOCLl~N Tl,JC T-!11 NHIP GIO'A: -31 TOI 37 CHIf>~ LAM RO) II PROJECT IMPLEMENTATION CONSULTANT lVVAN THIJC Hl~N DIJAN SYSTRAS.A FILE NMIEITtNBANvE: DESIGNED BYTllli;r~ : A. K 1C 25108110 18 23/08/10 CHECl<EDBYsoAT: G. Mauris U 1lld A.K 1--=--t== --1-'u"'PDA= JED------------+A"".""K---F-'=--1-'== --t HANOI METROPOLITAN RAIL TRANSPORT PROJECT BOARD 30 00 1A 31/01/10 REVISION DATE Fir.t - - A. K BAN DI/ANflOONG llATflO THIHhQI DESCRIPTION NQIDlolG 80'A001 -rr!Elt PROJECT DIRECTORIGIAM!lOcIll./AA: CHIEFDESIGNERI CHONHla,I THI~ Kt : SCIASOI NGAY Alain B6chereau P. Amaud 3000 FORIMTIKl() BANv£: A1 STATUSlT1NH ~ : Technical Design DAlENGAY: 31/01/10 ThLl dlawl1111 rru11tnct i. .....-mi..t,~ i:r~ ~ ii whole or in part orUlldforanrp.,.,._wthcU lh9pricrwrillln permiHionofHRS. Mn ...... .....O..,._ oo) ............ ..... ... ..,.,,mOI........ ....~ ...-o..,..,ID'llt'*"*'*'""'"""· 300 0 3000 20 0 NOTE: ------------~ GHICHU: -ALL DIMENSIONS ARE IN MILLIMETERS. TATcA c:Ac KICH THlJOCTHEOOON MM. PRO.ECTDlfm: HANOI PILOTUGKT METRO LINE Sadlon Nhon- Hanoi RalwaySlatlon TimNEllJOt.lG sAT00 THI THIElltMTP HANOi Eoftl Nh&i-Ge H~ NOi TITLEl'ltNBAN1£: NHUE RIVER CROSSING WQ'T SONG NHUI;: DECK- PT- PLAN VIEW & ELEVATION - 617 BAN M.!<T cAU - PT - M.!<T BANG & M.!<T ElO'NG - 6I 7 ORAWINGNO.BANvESO: PIC-TEC-GST-WVO-J04-18406-B 2A
  • 160.
    ~·L~~~~~ 0 0 cc ~;:::: (') (') +1 D ENDOF CABLE f>Au cAP 0 START OF CURVE f>AU f>llONG CONG 0 END OF CURVE CUOI ELIO'NG CONG 0 0 0 ::;: LEGEND GHICHO 0 0 ~ SA1 ----- PASSIVE ANCHORAGE NEO BlflQNG ~ ACTIVE ANCHORAGE NEO CHO flQNG 1----+------------------+----+--->------< CLIENT: 1----+---+---------------+---+---t------l CH09AUTLI: 2A 30IGl/11 2nd •ubml11lon oflllchnlcald-.,, A. K 37 .,.... .... ~ ....cc.,.... .... <11 II II >< N SA3 Oo ic;;cc"' ~cc ~ ........ ";" v";" II II II II >< N cc.,.... )( N (').,.... 37 :Ii~ 36 cc li! ......... a.,....... I IO 1 II 11 XN II 11 )( N 37 36 HRB 1C 25108110 18 23/08/10 U ~ A.K 1--=--F= '"'--+""'uPDA=JED"-- - - - - - - - - - - - +A"'.K"'"---+=~-=~--i HANOI METROPOLITAN RAIL TRANSPORT PROJECT BOARD 1A 31/01/10 REVISION DATE SCIASOI NGAY Fi..t - . A. K BAN DI/ANflOONG llATflO THIHhQI OESCRIP'TlON NQIDlolG 80'A001 -rr!Elt 0 0 0 iO LONGITUDINAL ELEVATION SHOWING CHI RA ~Tf>lJNG CABLE NO. 32 ONLY FOR CLARITY cAPSO 32 CHI ei;_ LAM RO LONGITUDINAL ELEVATION SHOWING CHI RA ~T f>lJNG CABLE NO. 33 ONLY FOR CLARITY cAPSO 33 CHI ei;_ LAM RO 36 35 34 .......... ........ Nl"il~~ ~(') ~~ cc cc iii~ ro ~ II II >< N II II >< N II II >< N 0 0 0 0 cc 0 cc 0 !:.! ~ l"il ~ IO IO IO SA4 oa> o<D "°a> 00 (J) ~IO l"il•IO";" IO";" II II II II )( N ... Cl) >< N 0 IO 35 cc~ 34 12;::::~ ......IO 1 IO";" II 11 )( N II 11 )( N 35 34 LONGITUDINAL ELEVATION MAT CAT DOC SCALE: 1150 TI' LI;: 1/50 II PROJECT IMPLEMENTATION CONSULTANT TU VAN THIJC HIENDIJ AN SYSTRAS.A FILE NMIEITtNBANvE: DESIGNED BYTlll"1~ : A. K CHECl<EDBYsoAT: G. Mauris 0 0 alIO PROJECT DIRECTORIGIAM!lOcIll./AA: CHIEFDESIGl'ERICHOttila,I THI~ Kt : Alain B6chereau P. Amaud 0 0 0 0 cc(') CD CD FORIMTIKf() BANv£: A1 0 0 0 cc ~ ~ o .,. cc ~ ~ ";" II 11 )( N Ed STATIJS lT1NH ~ : Technical Design DAlENGAY: 31/01110 ThLl dlawl1111 rru11tnct i. .....-mi..t,~ i:r~ ~ ii whole or inpart orUlldfor anr p.,.,._wthcU lh9prtrwrillln permiHionofHRS. Mn .. .... .....O..,._ oo) ........... ..... ... ..,.,,mOI........ ....~ ...-o..,..,ID"llt'*"*'*'""'"""· 31 cc .... ;!!:! .... CC IO CD";" II II >< N 0 0 i5 ....cc ~o l"il~ cc ";" II 11 )( N 31 SA9 53 t'0 0 0 0 al 0 cc ..... ;:::: == =d I SA9 S3 NOTE:- - - - - - - - - - - -- GHI ~°ALL DIMENSIONS ARE IN MILLIMETERS. TAT cA cAC K!CH THLIO'c THEO EON MM. PRO.ECTDlfm: HANOI PILOTUGKT METRO LINE Sadlon Nhon- Hanoi RalwaySlatlon TimNEllJOt.lG sAT00 THI THIElltMTP HANOi Eoftl Nh&i· Ge H~ NOi TITLEITtNBANvE: NHUE RIVER CROSSING WQ'T SONG NHUI;: DECK- PT- PLAN VIEW & ELEVATION - 717 BAN M.!<T cAU - PT - M.!<T BANG & M.!<T FJO'NG - 7 J7 ORAWINGNO.BAN~SO : PIC-TEC-GST-WVO-J04-18407-B 2A
  • 161.
    CABLE NO. 1A 2A3A 4A 5A 6A 7A BA 9A 10A 11A 41A 42A 43A 44A 1B 2B 3B 4B SB 6B 7B BB 9B 10B 11BcAPsO f)'8~ 1 v1 2x12T15 2x12T15 2x12T15 2x12T15 2x12T15 2x12T15 2x12T15 2x12T15 2x12T15 2x12T15 2x12T15 2x12T15 2x12T15 2x12T15 2x12T15 2x12T15 2x12T15 2x12T15 2x12T15 2x12T15 2x12T15 2x12T15 2x12T15 2x12T15 2x12T15 2x12T15 LENGTH fm{CH1i;u DAI m 9.056 9.002 14.991 21.002 27.002 33.011 39.001 45.028 51.021 57.031 63.031 14.318 24.254 27.329 30.210 9.056 9.002 14.991 21.002 27.002 33.011 39.001 45.028 51.021 57.031 63.031 " ~vc (Ion) 238.9 238.9 238.9 238.9 238.9 238.9 238.9 238.9 238.9 238.9 238.9 238.9 238.9 238.9 238.9 238.9 238.9 238.9 238.9 238.9 238.9 238.9 238.9 238.9 238.9 238.9L KlrH n co m~m) 61 62 101 137 175 212 248 283 319 353 387 95 148 174 183 61 62 101 137 175 212 248 283 319 353 387 PHAN~ODAI NEC 12T15 12T15 12T15 12T15 12T15 12T15 12T15 12T15 12T15 12T15 12T15 12T15 12T15 12T15 12T15 12T15 12T15 12T15 12T15 12T15 12T15 12T15 12T15 12T15 12T15 12T15 w B: 1 2 3 4 5 • 7 • • 10 11 - - - - - - - - - - - - - - - "zw - - - - - - - - - - - 1 2 3 4 - - - - - - - - - - - ~ RWl~oc...1:13 - - - - - - - - - - - - - - - 1 2 3 4 5 • 7 • • 10 11 "'" 81.~r~a~4 ~ - - - - - - - - - - - - - - - - - - - - - - - - - - .,,, GW"Eo~s - - - - - - - - - - - - - - - - - - - - - - - - - -.,~ STAGESw~ 1"2 GIAIEOANB - - - - - - - - - - - - - - - - - - - - - - - - - - ~ GiAi'"'Eo/Ji1 - - - - - - - - - - - - - - - - - - - - - - - - - - CABLE NO. 41B 42B 43B 44B 31 32 33 34 35 38 37 21A 22A 21B 22B 51 52 53cAPSO fs'8~ 1 v1 2x12T15 2x12T15 2x12T15 2x12T15 2x12T15 2x12T15 2x12T15 2x12T15 2x12T15 2x12T15 2x12T15 2x12T15 2x12T15 2x12T15 2x12T15 2x19T15 2x19T15 2x19T15 LENGTH m 14.318 24.254 27.329 30.210 13.294 19.315 25.343 31.313 37.320 43.360 49.319 14.298 20.326 14.298 20.326 68.142 68.081 68.086CHIEU DAI m Lu-C l.1CH " (I On) 238.9 238.9 238.9 238.9 238.9 238.9 238.9 238.9 238.9 238.9 238.9 238.9 238.9 238.9 238.9 378.3 378.3 378.3 ~~N~~ ~j'(m~m) 95 148 174 183 88 120 147 195 222 247 293 95 126 95 126 383 405 403 ANCHORAGE 12T15 12T15 12T15 12T15 12T15 12T15 12T15 12T15 12T15 12T15 12T15 12T15 12T15 12T15 12T15 19T15 19T15 19T15NEC w STAGE 1 - - - - - - - - - - - - - - - - - - " GIAIEOAN 1 z STAGE2 - - - - - - - - - - - - - - - - - -w GIAIEOAN2 ~ 8W~~o~3 .,~ STAGE4 1 2 3 4 - - - - - - - - - - - - - -t!)Z GIAIEOAN4 ~ STAGE5 - - - - 1 3 - - - 4 2 - - - - - - -.,,, GIAIEOAN5 .,~ STAGESw~ GIAIEOANB - - - - - - - - - - - 1 3 2 4 - - - «z ~ 8W~~dNG1 - - - - - - 1 2 ' - - - - - - 4 5 • DESfRIPTION OF STRESSING SEQUENCE :- Prestresslng strands characteristics cac 66.c tlnh tao Clip clng trWc MO t TRINH TU' c:ANG GAP:- Nomlnal diameter of strand 15.24 mm STAGE 1:- SJ.ll.ESW~ CANTIL[,VER TENooim_ ',jOM 1A ;i;g.11A CURI~ CASTING OF CANTILEVER AT PIER NO. P152. e·......., kfnh danh "!nh a.la tao c6p GIAIEOAN1:- G GTL11Afl N11ATRONGQ NHflUC GTAI TRU .P152. Nominal cross-sectional area ot strana 1<tU mmz STAGE 2:- SlRESSING OF CONTINUITY TENDONS OF LATERAL SPAN BETWEEN PIER NO P151 & P152 DURING CONNECTION WITH LATERAL SPAN. Dien tfch mat ck ngang danh (fjnh cUa tao Clip GIAI EOAN 2:- c:ANG GAP LIEN TUCCOA NHIP BEN GiO'A TRU SO P151 & P152 TRONG QUA TRINH Ki:t" NOi VOi NHIP BEN. ..,,timate tens11e strengrn or strana, rpu 1860 N/mm2 STAGE 3:- SJ.ll.ESW~ ~TIL[,VER TENooim_ ',jOM 1B ;i;g.11B CURI~ CASTING OF CANTILEVER AT PIER NO. P153. GIAIEOAN3:- G GTD'1Bfl N11BTRONGQ NHflUC GTAI TRU .P153. Clll)ng c!O k8o toi hlim cUa tao c6p, fpu STAGE 4:- SJ.ll.ES~NG OF COl'(TINUITY TENDONS~ LATERAL SPAN BETWJf,N ~ER610J:153 & r,154 DURING CONNECTION WITH LATERAL SPAN. Minimum breaking load of sband 260.4 kN GIAIEOAN4:- G PLIENTl,lCCUANHIPBENGIO'ATRU P153&P154TRONGQUA NH TN IV INHIPB N. Tdl lrQng ph6hu~161 thliu cila tao Clip STAGE 5:- SJ.ll.ESSING FIRST S~G~ OF COl)IIINUITY TE= OF~IN Sf~,jBEFOFJ' REMOVAL OF FROM "TRAVELLER AT MID SPAN) 11e1a stregm 1r strana, 'flY 1670 N/mm2 GIAI EOAN 5:- G GIAI E~N MOT P LI NTUC C NHIP CHINH KHI 0 GI E If>ONG NHIP GiO'A) Gi6'i h11m cluiy, nAu tao Clip, fpy STAGE 6:- SJll.ES~NGt,DDITION~L TENDJ6NS AT THE TOP OF PIER NO. P152 & P153 ....aS11c m....u1us l<>fUUU ,,,,mm;£ GIAIEOANB:- G PB SUNGT61ENHTRU P152&P153 MO c!un clBn hbi STAGE 7:- SlRESSING SECOND STAGE OF CONTINUITY TENDONS~ MAIN SPAN BEFORE INSTALLING SIDL Relaxation after 1000 hrs at 2o•c & 70% GUTS 2.50% GIAI EOAN 7:- c:ANG GIAI EOAN HAI cAP LIEN TUC COA NHIP CHINH TRUO'C KHI ~T SIDL ChQng (Ing su6tsau 100gl&1'120oC & 70%%% GUTS Nomina1 mass or sbana TIQflg luvng danh (fjnh cila tao clllp 1.102 kg/Im .JaCKlnQ TDrc& 75,., ,..,u Li,rc kfch -NOTEfi:- GHICH : 1. FOR GENERAL NOTES REFER SEPARATE DRAWING. 1. V¢1 cAc GHI CHO CHUNGXEM BAN~ RIENG Bll;:T. 2. FOR GENERAL PIT SCHEME REFER TO PIC-TEC-GST-WVO-J00-18400-B. 2. vE BO TRI PIT CHUNG XEM PIC-TEC-GST-WVO-J00-16400-8. 3. FOR TENDON ELEVATION AND PLAN VIEW LAYOUT REFER TO PIC-TEC-GST-WVQ-J00-18401.S TO PIC-TEC-GST-WVQ-J00-18407.S. 3. VE M~T EO'NG VA BO TRI W,T BANG cAP XEM PIC-TEC-GST-WVO-J00-16401-B EEN PIC-TEC-GST-WVO-J00-16407-B. 4. FOR TENDON SETTING OUT REFER TO PRESTRESSING CROSS-SECTION DRAWINGS PIC-TEC-GST-WVQ-J00-184010-B TO PIC-TEC-GST-WVQ-J00-18419.S. 4. VE nili:t" V.P cAP XEM cAc BAN VE Wi,T cAT NGANG O'NG SUA.T TRUO'C PIC-TEC-GST-WVO-J00-164010-B TO PIC-TEC-GST-WVO-J00-16419-B. 5. FOR METHOD OF CONSTRUCTION AND SEQUENCES REFER TO PIC-TEC-OCM-WVO-J00-16011-B TO PIC-TEC-GCM-WVQ-J00-18013.S. ~ 5. VE BiSN PHAP VA TRINH TU' nil CONG XEM PIC-TEC-GCM-WVO-J00-18011-B DEN PIC-TEC-GCM-WVO-J00-18013-B. i CLIENT: II PROJECT IMPLEMENTATION CONSULTANT FIL£NMIEITtN BANv£ : SCAl.Elli'L.f:: STATUSTlNH~: PRO.ECT01,rN.I: HANOI PILOT LIGHT METRO LINE Sectkln NOOn - Hanoi Ralway S1atlan ~ ' CH0f>AUTl1: lVVANTHIJCHll;:N DIJAN PIC.'fEC.OST-WVQ.JIM..11MD118_2ADINl3 - Technical Design TIM:N El.IO'NG sA.TE0 THI THIEl~M TP HA NOi E>o1ir1 Nh&i- Ge Hill NQI •~ I SYS"TRAS.A DESIGNED BYITllltrKE: : FORtMTIKt() BANv£: DAlEINGAY: TITLfIrtN BAN v£ : ~ HRB NHUE RIVER CROSSING '§ A.K A1 31/01110 lll1QT SONG NHUo7 ~§ "' 30I04/11 2nd submission of lechnlcaldes91 A.K 3.Maurls ·"""""' ! ~ 1i 1C 25I08/10 UM•'"' A.K k:3.Maur1s ·"""""' CHECKED BYsoAT: Thladr-ingrnJlllnolba-IDar-.d,coplaclor-rapmcilcad DECK - PT - SUMMARY AND SEQUENCESHANOI METROPOLITAN RAIL TRANSPORT PROJECT BOARD '¥ 18 ,...,,, UPDATE> A.K ~.MauriB "·"""""' G. Mauris i1 whole ar in part or used for any Prl4XM8 wihoU; lh8 priorwrillfll"I BAN M,iT cAU- PT-TOMTATVAcAC TR]NHTI/ ~ 1A 31/01/10 Fi18118a111 A.K 3.MauriB ·"""""' BAN DI/AN DUONG sAT!lO1111 HA NQI permissiondHRB. ~. -· ·-· PROJECTDIRECTORIGIAMElOC DI/Nol : CHEFDESIGtERICHO ttill;M Tllltr ~ : Mn vii n6y khllng <t.rvc ~Ill- lt,lng - rn;il h'1h h)c, m(ll phln tmv DRAWING 00.IBANv£SO : I2A~ ~;; REVISION "'"' "'""'"""'" -·- lallln bl), mi1I khllng<tJvc.,a&ngtbingWntimia:. HRB. PIC-TEC-GST-WVO-J04-18408-BscrAa01 NGAY NOi OlMG scrA001 ..... ""' ClliNll)lllEllE Alain B8chereau P.Amaud
  • 162.
    SECTION AT CHAINAGE MATCAT T1!JoYTRlNH NUM Y 42 2122 43 2303 44 2001 SECTION AT CHAINAGE MAT CAT TAI LYTRlNH" X=2500 NUM Y 42 1951 43 2199 -1125 44 1804 -1870 SECTION AT CHAINAGE MAT CAT T11!x,Y TRlNH NUM Y 42 1825 -1670 43 2121 -1508 44 1659 -1670 1----0----+-------------+----+-----o---< CUENT: ~' ~~M ~ ~~ t - - - + - - - - + - - - - - - - - - - - - - - - - - - - - - - t - - - l 7 1~ t--~-r30/00_1_1 -+-2~-.-.b-mm-100-~lllch-nl-~-1d-.,,-------+-A.-K---;t----+-----1 HRB SECTION AT CHAINAGE MAT CAT T1!1~Y TRlNH ,.----- NUM y I 42 2078 I 43 '22.77 I 44 1950 I I c42 I I ., cf4 SECTION AT CHAINAGE MAT CAT TAI LY TRlNH" X=3000 NUM Y Z 42 1909 -1884 43 2173 -1254 44 1758 -1870 SECTION AT CHAINAGE MAT CAT T111oY TRlNH NUM Y 42 1781 -1670 43 2097 -1598 44 1609 -1670 II PROJECT IMPLEMENTATION OONSULTANT lV VAN THIJC Hl~N DIJ AN SYSTRAS.A ~ ~ ~ 1C 251D8110 U 1lld A.K Ii; ., 1il 1-- 1 """ 8 --r-2 3/08/1="'-- 0 -+""'UPDA=JED'"------------+-'A."""K---;i==="'--+"'="--1 HANOIMETROPOLITAN RAILTRANSPORT PROJECT BOARD ~ It 1A 31/01/10 Fir.t -- A. K BAN DI/ANDUONG llATflO Tlll~NQI I- c ~ REVISION DATE OESCRIPTlON - l ' f Q1El:RJJl'f ~ ~ i SCIASOI NGAY NQIOlolG 80'AOOI Hilt IQIJ PROJECT OIRECTORIGIAM!lOcIll./AA: Alain B6chereau Y=QZ=O Y=QZ=O SECTION AT CHAINAGE MAT CAT T1!JooYTRlNH NUM Y z 42 1993 43 '22.25 44 1853 SECTION AT CHAINAGE MAT CAT TAI LY TRlNH" X"3500 NUM Y 42 1887 -1670 43 2147 -1383 44 1707 -1870 SECTION AT CHAINAGE MAT CAT T1~~r TRlNH NUM Y 42 1739 -1670 43 2088 -1652 44 1561 -1670 Y=OZ=O Y=OZ=O Y=OZ=O NOTE~:~--------------------------------------. GHICHU - ALLDIMENSIONS ARE IN MILLIMETERS. TATcA cAC i<TCH THIJO'C THEO OON 111 MM. - TH~.T,ENDON LAYOlJT IS SYMMETRICAL TO THE SEGMENT CENTER LINE (Z=O) M~T .,,..,,G cAP lA001XIJNG VOi ELIONGTM.I PHAN~ (Z=O) - FOR GENERAL PIT SCHEME REFER TO DWG.No.PIC-TEC-OST-WVO.J00.18400-B. -VOi BO TRIPfT TONG THI;, XEM B.l.N /!;SO PIC.TEC-GST-Wf0.J00.1840~B. - FOR TE~DON ELEVATION AND PLAN VIEW LAYOUT REFER TO DWG. No. PIC-TEC-GST-WVo-J00-18401.S TO PIC-TEC-GST-WVo-J00-18407.S. - VI: ~T EIJNGVA 00 TRI ~T BANG CAP XEM BAN vE:SO PIC.TEC.GST-WVO-J00.18401-B E~N PIC.TEC-GST-WVO-J00.18407-8. - FOR PRESTRESSING DETAIL AND SEQUENCES REFER TO DWG. No. PIC-TEC-GST-WVo-J00-18406-B. vr: CHI Ti8° VA TRINH TL! l/NG SuAT TRLIOC XEM BAN v~soPIC.TEC-GST·WfO.J00.18408-B. FILE NMIEITtNBANvE: DESIGNED BYTllli;r~ : FORIMTIKf() BANv£: A. K A1 STATUS lT1NH ~ : Technical Design DAlENGAY: 31/01110 CHECl<EDBYsoAT: n.~ •-.-.i """"" "" _""_,,_, .,._ __, G. Mauris n wholo or in portm".-forln!'P'-wlhoo.l lhoprior- 1-----,,...--..,......,---1 permiHionofHRB. CHIEFDESIGl'ERCHOttila,I THI~Kt : Mn ....,. "'°""°"""- w...,.-.i....,"""""""""'rnOI,....., P. Arnaud .... ~ ma -o..,..,ID"llt'*<i *'*' ""' """· PRO.eCTDlfm: HANOI PILOTUGKT METRO LINE Sadlon Nhon-Hanol RalwaySlatlon TimNEllJOt.lG sAT00 THI THIElltMTP HANOi Eoftl Nh&i-Ge H~ NOi TITLEl!tNBAN1£: NHUE RIVER CROSSING WQ'T SONG NHUI;: DECK - PT - CROSS SECTIONS - 1 / 10 BAN M.!<T cAU - PT - M.!<T cAT - 1 / 10 DRAWINGNO. BANvESO : PIC-TEC-GST-WVO-J04-18410-B 2A
  • 163.
    ~ ' SECTION ATCHAINAGE MAT CAT T1!e!ooY TRlNH NUM Y z 42 43 44 SECTION AT CHAINAGE MAT CAT T11~1 TRlNH NUM Y 11 2560 -193 41 1819 -1388 42 1657 -1675 43 2087 -1675 44 1487 -1675 NUM 10 11 41 42 43 44 SECTION AT CHAINAGE MAT CAT TAI LYTRiNH" X=11000 y z 2640 -174 2440 -106 1820 -1698 1650 -1698 2079 -1698 1480 -1698 1------------------------------< CLIENT: t - - - + - - - + - - - - - - - - - - - - - + - - - + - - - - + - - - - l CH09AUTLI: ~ ~ ~7 1~ t--~-+3-0I00_1_1 -+-2-~-.u-bm-m1-oo-~-lllch-nl~-1-d-.,,-------+A-. K--+----+----l HRB SECTION AT CHAINAGE MAT CAT T1!7 !ooY TRlNH NUM Y z 11 42 43 44 SECTION AT CHAINAGE MAT CAT T1!9 !ooY TRINH 0 NUM Y 11 2520 -105 41 1829 -1600 42 1658 -1879 43 2085 -1879 44 1488 -1879 SECTION AT CHAINAGE MAT CAT TAI LYTRiNH• X=12000 NUM y 10 2680 11 2400 41 1815 42 1645 43 2074 44 1475 z -103 -106 -1713 -1713 -1713 -1713 II PROJECT IMPLEMENTATION CONSULTANT lV VAN THIJC HIENDIJ AN SYSTRAS.A ~ ~ ~ 1C 251D8110 U 1lld A.K Ii; ., 1il t-- 1 "'" 9 --+'2""3/08/1==0-+-U=PDA=J E D = - - - - - - - - - - - +A=.K"----F-'=--+=="---l HANOIMETROPOLITAN RAILTRANSPORT PROJECT BOARD ~ It 1A 31/01/10 Fir.t - - A. K BAN DI/ANDUONG llATflO Tlll~NQI >- c ~ REVISION DATE OESCRIPTlON - l ' f Q1El:RJJl'f ~ ~ i SCIASOI NGAY NQIOlolG 80'AOOI !Elt IQIJ PROJECT DIRECTORIGIAM!lOcDI./AN: Alain B6chereau Y=()Z=O Y=()Z=O Y=()Z=O SECTION AT CHAINAGE MAT CAT T1~~1 TRlNH NUM Y z SECTION AT CHAINAGE MAT CAT TAI LYTRlNHX=10000 NUM y 10 2600 ~1 6 11 2480 -105 41 1824 -1684 42 1654 -1684 43 2084 -1684 44 1484 -1684 SECTION AT CHAINAGE MAT CAT TAI LYTRiNH• X=13000 NUM y 9 2600 10 2720 -103 11 2360 -106 41 1811 -1727 42 1641 -1727 43 2070 -1727 44 1471 -1727 Y=OZ=O Y=DZ=O Y=OZ=O NOTE~:------------------------------------------. GHICHU ·ALLDIMENSIONS ARE IN MILLIMETERS. TAtCAcAC i<ICHTHIJOO TliEO OON VI MM. - THE TENDON LAYOIJT IS SY MMETRICAL TO THE SEGMENT CENTER LINE (Z=O) MJl.T BANG c>i' LAEJOI XIJNGW I EJLIO'NG TAM PHAN ~ (Z=O) - FOR GENERAL PfT SCHEME REFER TO DWG. No. PIC-TEc-GST-WVO.J00-18400-8. - VOi BO TRI PITTONGTliE, XEM BAN Vi:: SO PIC-TEC-GST-WVOJ0().18400-8. - FOR TENDON ELEVATION AND PLAN VIEW LAYOUT REFER TO DWG. No. PIC-TEC-GST-WVQ..J00-18401-8 TO PIC-TEC-GST-WVQ..J00-18407-B. -VE MJl.TEJO'NG VA BO TRI MJl.T BANG cAP XEM BANVE SOPIC-TEC-GST-WVQ.J0().18401.aEJEN PIC-TEC-GST-WVOJ0().18407-B. - FOR PRESTRESSING DETAIL AND SEQUENCES REFER TO DWG. No. PIC-TEC-GST-WVO-JOG-18408-8. VE CHI TiETVATRINHTU' LING SuAT TRlJOC XEM BANVESOPIC-TEC-GST-WVOJ0().18408-8. FILE NMIEITtNBANvE: DESIGNED BYTlll"1~ : FORIMTIKl() BANv£: A. K A1 STATUS lT1NH ~ : Technical Design DAlEINGAY: 31/01110 CHECl<EDBYsoAT: n.~ •-.-.i """"" '" _""_,,_, .,._ __, G. Mauris n wholo or in portot.-forlll!'P'-wlhoo.l lhoprior- 1-----,,...--..,.......,,.....-1 permiHionofHRB. CHIEFDESIGl'ERCHOttila,I THI~Kt : Mn ....,. "'°""°"""- w...,.-.i....,"""""""""'rnOI...,,.., P. Arnaud .... ~ ma -o..,..,ID"llt'*" *'*' ""' """· PROJECTDlfm: HANOI PILOTUGKT METRO LINE Sadlon Nhon- Hanoi RalwaySlatlon TimNEllJOt.lG sAT00 THI THIElltMTP HANOi Eloftl Nh&i-Ge H~ NOi TITLEl'ltNBAN1£: NHUE RIVER CROSSING WQ'T SONG NHUI;: DECK - PT - CROSS SECTIONS - 2 / 10 BAN M.!<T cAU - PT - M.!<T cAT - 2/ 10 DRAWINGNO. BANvESO : PIC-TEC-GST-WVO-J04-18411-B 2A
  • 164.
    ~ ' SECTION ATCHAINAGE MAT CAT TAI LY TRlNH• X=14000 NUM y 9 2560 10 2760 -102 11 2320 -107 41 1803 -1751 42 1633 -1751 43 2062 -1751 44 1463 -1751 044 SECTION AT CHAINAGE MAT CAT T1!1 JJTRINH NUM Y 8 2640 9 2440 10 2880 11 2200 41 1783 42 1613 43 2042 44 1443 SECTION AT CHAINAGE MAT CAT TAI LYTRlNHX"20000 NUM y z 7 2560 -188 8 2760 -102 9 2320 -107 10 3000 -100 11 2080 -109 41 1765 -1818 42 1621 -1880 43 2023 -1880 44 1424 -1880 Y=OZ=O Y=OZ=O Y=OZ=O 1------------------------------< CLIENT: t - - - + - - - + - - - - - - - - - - - - - + - - - - + - - - - + - - - l CH09AUTLI: ~ ~ ~7 1~ t--~-+3-0I00_1_1 -+-2-~-.u-bm-m1-oo-~-lllch-nl~-1-d-.,,--------+A-. K---+----+---l HRB SECTION AT CHAINAGE MAT CATTAILY TRlNH• X=15000 NUM y 9 2520 10 2800 -102 11 2280 -107 41 1796 -1774 42 1626 -1774 43 2055 -1774 44 1456 -1774 8 88ctt SECTION AT CHAINAGE MAT CAT T1!1 1JTRINH NUM Y 8 2680 9 2400 10 2920 11 2160 41 1778 42 1608 43 2037 44 1438 044 SECTION AT CHAINAGE NUM 7 8 9 10 11 41 42 43 44 MAT CAT TAI LYTRlNHX"21000 y 2520 2800 2280 3040 2040 1741 1717 2015 1416 z -105 -102 -107 -100 -110 -1632 -1900 -1900 -1900 II PROJECT IMPLEMENTATION CONSULTANT lVVAN THIJCHIENDIJ AN SYSTRAS.A ~ ~ ~ 1C 251D8110 U 1lld A. K Ii; ., 1il t-- 1 "'" 9 -+'2""3/08/1==0-+-'U=POA= J E D = - - - - - - - - - - - +...=.K"'----i='="-+=="--l HANOIMETROPOLITAN RAILTRANSPORT PROJECT BOARD ~ It 1A 31/01/10 Fir.t - - .... K BAN DI/ANDUONG llATflO TlllHA NQI >- c ~ REVISION DATE OESCRIPTlON - l'f Q1El:RJJl'f ~ ~ i SCIASOI NGAY NQIOlolG 80'AOOI Hilt IQIJ PROJECT DIRECTORIGIAM!lOcIll./AA: Alain B6chereau Y=OZ=O Y=OZ=O Y=OZ=O ~t?i~~: -ALLDIMENSIONS ARE IN MILLIMETERS. TAT cA cAC KICH Tlil/OC THEO EO'NVI MM. SECTION AT CHAINAGE MAT CATTAILY TRlNH• X=16000 NUM y 8 2600 9 2480 -105 10 2840 -102 11 2240 -108 41 1788 -1798 42 1618 -1798 43 2047 -1798 44 1448 -1798 SECTION AT CHAINAGE MAT CAT T1!1 !JTRlNH NUM Y 7 2600 8 2720 9 2360 10 2960 11 2120 41 1772 42 1602 43 2032 44 1432 SECTION AT CHAINAGE MAT CAT TAI LYTRlNHX"21620 0 0 0 NUM y z 7 2495 -105 8 2825 -102 9 2255 -107 10 3065 -99 11 2015 -110 41 1724 -1496 42 1747 -1916 43 2010 -1916 44 1411 -1916 - THE TENDON LAYOIJT IS SYMMETRICAL TO THE SEGMENT CENTER LINE (Z=O) M~T BANG cAP LA001 XIJ'NG VOi Ell/ONGTAM PHAN OOAN (Z=<J) - FOR GENERAL PIT SCHEME REFER TO DWG. No. PIC-TEC-GST-WV~OD-1 8400-8. - VOi BOTRI PIT TONG THE, XEM BANVE SOPIC-TEC-GST-wvo.J00-1840().8. Y=OZ=O Y=OZ=O Y=OZ=O - FOR TElllDON ELE'!_~TION AND PLAN VIEW LAYOUT REFER TO DWG. No. PIC-TEC-GST-WVO.J00-18401-B TO PIC-TEC-GST-WVO.J00-18407-B. - VE-~T El/NG VA BOTru ~T BANG cAP XEM ~~SO PIC-TEC-GST-WVO-J00.18401-BEEN PIC-TEC-GST-WVO-J00-18407.S. - FOR PRESTRESSING DETAIL AND~EQUENCES REFER TO DWG. No. PIC-TEC-GST-WVO.JOD-18408-8. v£ CHI TIET VA TRINH Tl/ lJNGSuA.T TRllv... XEM BAN'/£"SO PIC-TEC-GST-WVO-J00-18408-8. FILE NMIEITtNBANvE: DESIGNED BYTlll"1~ : FORIMTIKl() BANv£: A. K A1 STATUS lT1NH ~ : Technical Design DAlENGAY: 31/01110 CHECl<EDBYsoAT: n.~ •-.-.i """"" "" _""_,,_, .,._ __, G. Mauris n whol1 or inpor1..-.-ror..,,. p,_w111oo.1 111opr1or- 1-----,,...--..,......,....-1 permiHionofHRB. CHIEFDESIGNERCHOttila,I THI~Kt : Mn ....,. "'°""°"""- w...,.-.i....,"""""""""''"°'...,,...,P.Arnaud .... ~ ma -o..,..,ID"llt'*" *.., ""' """· PRO.ECTDlfm: HANOI PILOTUGKT METRO LINE Sadlon Nhon- Hanoi RalwaySlatlon TimNEllJOt.lG sAT00 THI THIElltMTP HANOi Eoftl Nh&i -Ge H~ NOi TITLEITtNBANvE: NHUE RIVER CROSSING WQ'T SONG NHUI;: DECK - PT - CROSS SECTIONS - 3 / 10 BAN M.!<T cAU - PT - M.!<T cAT - 3/ 10 DRAWINGNO. BANvESO: PIC-TEC-GST-WVO-J04-18412-B 2A
  • 165.
    ~ ' SECTION ATCHAINAGE MAT CAT TAI LYTRlNHX=22000 NUM y 6 2600 -320 7 2480 -105 8 2840 -102 9 2240 -108 10 3080 -99 11 2000 -110 42 1748 -1926 43 2007 -1926 d'444 1408 -1926 SECTION AT CHAINAGE MAT CAT TAI LY TRlNHX=24620 0 0 0 0 NUM y 6 2705 -103 7 2375 -106 8 2945 -101 9 2135 -109 10 3185 -98 11 1895 -111 42 1691 -1599 43 1884 -2019 44 1541 -2019 SECTION AT CHAINAGE MAT CAT TAI LY TRiNH• X=27000 0 0 0 d NUM y z 5 2520 -105 6 2800 -102 7 2280 -107 8 3040 -100 9 2040 -110 10 3280 -97 11 1800 -112 43 1626 -1854 44 1559 -2123 Y=OZ=O Y=OZ=O 1-----------------------------< CLIENT: t - - - + - - - + - - - - - - - - - - - - - + - - - - + - - - - + - - - l CH09AUTLI: ~ ~ ~7 1~ t--~-+3-0I00_1_1-+-2-~-.u-bm-m1-oo-~-lllch-nl~-1-d-.,,-------+A-. K---+----+---l NUM 6 7 8 9 10 11 42 43 44 NUM 5 8 7 8 9 10 11 43 44 NUM 5 6 7 8 9 10 11 43 44 HRB SECTION AT CHAINAGE MAT CAT TAI LYTRlNHX=23000 y 2640 -179 2440 -106 2880 -101 2200 -108 3120 -99 1960 -110 1736 -1905 1931 -1962 1433 -1962 SECTION AT CHAINAGE MAT CAT TAI LY TRlNHX'"25000 0 0 y 2600 -328 2720 -103 2360 -106 2960 -100 2120 -109 3200 -98 1880 -111 1843 -2033 1544 -2033 0 SECTION AT CHAINAGE MAT CAT TAI LYTRiNH" X=27620 y 2495 2825 2255 3065 2015 3305 1775 1558 1563 z -105 -102 -107 -99 -110 -97 -112 -1731 -2151 II PROJECT IMPLEMENTATION OONSULTANT lV VAN THIJC Hl~N DIJ AN SYSTRAS.A ~ ~ ~ 1C 251D8110 U 1lld A. K Ii; ., 1il t-- 1 "" 9 -+'2""3/08/1==0-+-U=PDA=JED=-----------+A=.K"'----F-'=--+=="--l HANOI METROPOLITAN RAIL TRANSPORT PROJECT BOARD ~ It 1A 31/01/10 Fi..tleaJo A.K BANDl/ANfllKINGllATOOTHl~NQI I- c ~ REVISION DATE DESCRIP'TlON - l ' f Q1El:RJJl'f ~ ~ i SCIASOI NGAY NQI DlolG 80'AOOI !Elt IQIJ PROJECTDIRECTORIGIAM!lOcIll./AN: Alain B6chereau Y=OZ=O Y=OZ=O Y=OZ=O SECTION AT CHAINAGE MAT CAT TAI LYTRlNHX=24000 NUM y 6 2680 -103 7 2400 -106 8 2920 -101 9 2160 -108 10 3160 -98 11 1920 -111 42 1708 -1729 43 1949 -1997 44 1509 -1997 0 SECTION AT CHAINAGE MAT CAT TAI LY TRlNHX=26000 NUM y 5 2560 -188 6 2760 -102 7 2320 -107 8 3000 -100 9 2080 -109 10 3240 -98 11 1840 -112 43 1734 -2021 44 1551 -2078 SECTION AT CHAINAGE MAT CAT TAI LYTRiNH" X=28000 NUM y 4 2600 5 2480 6 2840 7 2240 8 3080 9 2000 10 3320 11 1760 44 1566 Y•OZ•O Y•OZ=O Y•OZ=O NOTE~:------------------------------------------. GHICHU - ALL DIMENSIONS ARE IN MILLIMETERS. TAT cAcAc KlCH THl!OC THEO f)()'N VI MM. - THE TENDON LAYOl/T IS SYMMETRICAL TO THE S EGMENT CENTER LINE (Z=O) ~T BANG GAP LA £l01 XlJNG W I Ell!O'NG TAM PHAN~ (Z=O) - FOR GENERAL PIT SCHEME REFER TO DWG. No. PIC-TEC-GST-WVO-J00-18400-B. • VOi BO TRI PIT TONG n-fi;_, XEM BAN yi; SO PIC-TEC-GST-WVO-J0().184QO.B. ·FOR TElIDON,Eley,~TION AND PLAN VIEW LAYOUT REFER TO DWG. No. PIC-TEC-GST-WVO-J00-18401-8 TO PIC-TEC-GST-WVO-J00-18407-8. - v~=~TEll!NG v,.. 00"1.... M"'T BANG cAP XEM MN vi:so PIC-TEC-GST-WVO-J0().18401-a El!ON PIC-TEC-GST-WVO-J0().18407-B. ·FOR PRESTRESSING DETAIL AND SEQUENCES REFER TO DWG. No. PIC-TEC-GST-WVO-J00-18408-B. V£ CHI Ti~ VA TRINH lV IJNG SUAT TRlJO'c XEM BAN~SO PIC-TEC-GST-WVO-J0().18408-B. FILE NMIEITtNBANvE: DESIGNED BYTllli;r~ : FORIMTIKl() BANv£: A. K A1 STATUS lT1NH~: Technical Design DAlEINGAY: 31/01110 CHECl<EDBYsoAT : n.~•-'11""""",__.,._,,_, .,._ __. G. Mauris n whol1or inpor1.,..-ror..,,.p,_w111oo.1111opr1or- 1-----.,...--..,.......,,....-1 permiHionofHRB. CHIEFDESIGl'ERCHOttila,I THI~Kt: Mn ....,. "'°""°"""-w'*''II....,"""""""""'rnOI,....., P. Arnaud .... ~ma-o..,..,ID'llt'*"*'*'""' """· PRO.ECTOlf AN : HANOI PILOTUGKT METRO LINE Sadlon Nhon- Hanoi RalwaySlatlon TimN EllJOt.lG sAT00 THITHIElltMTP HANQI Eloftl Nh&i-Ge H~ NOi TITLEl'ltNBANvE: NHUE RIVER CROSSING WQ'T SONG NHUI;: DECK - PT - CROSS SECTIONS - 4 / 10 BAN M.!<T cAU - PT - M.!<T cAT - 4 / 10 DRAWINGNO. BANvESO : PIC-TEC-GST-WVO-J04-18413-B 2A
  • 166.
    ~ ' SECTION ATCHAINAGE MAT CAT T11s~t TRlNH 0 NUM Y 4 2615 -269 5 2465 -105 6 2855 -101 7 2225 -108 8 3095 -99 9 1985 -110 10 3335 -97 11 1745 -113 22 1920 -562 44 1569 -2185 SECTION AT CHAINAGE MAT CAT T11,~'t TRlNH 0 0 0 NUM Y z 4 2705 -103 5 2360 -106 6 2945 -101 7 2120 -109 8 3185 -98 9 1880 -111 10 3425 -96 11 1640 -114 22 2002 -228 44 1494 -1890 SECTION AT CHAINAGE MAT CAT T1!32 1J'TRlNH NUM Y 3 2600 -183 4 2763 -102 5 2360 -106 6 3003 -100 7 2120 -109 8 3243 -98 9 1880 -111 10 3483 -95 11 1640 -114 21 1944 441 22 2051 -228 Y=OZ=O 1------------------------------< CLIENT: t - - - + - - - + - - - - - - - - - - - - - + - - - - + - - - - + - - - l CH09AUTLI: ~ ~ ~7 1~ t--~-+3-0I00_1_1-+-2-~-.u-bm-m1-oo-~-lllch-nl~-1-d-.,,-------+A-. K---+----+---l HRB SECTION AT CHAINAGE MAT CAT T1~~% TRlNH NUM Y 4 2640 -181 5 2437 -106 8 2880 -101 7 2197 -108 8 3120 -99 9 1957 -110 10 3360 -96 11 1717 -113 22 1944 441 44 1569 -2165 SECTION AT CHAINAGE MAT CAT T11lJ TRlNH 0 0 NUM Y z 3 2600 ~5 4 2720 -103 5 2360 -106 6 2960 -100 7 2120 -109 8 3200 -98 9 1880 -111 10 3440 -96 11 1640 -114 22 2002 -228 SECTION AT CHAINAGE MAT CAT T1MJ' TRlNH NUM Y 3 2600 -104 4 2824 -102 5 2360 -106 6 3064 -99 7 2120 -109 8 3304 -97 9 1880 -111 10 3544 -95 11 1640 -114 21 1982 -271 22 2194 -228 II PROJECT IMPLEMENTATION CONSULTANT lV VAN THIJC Hl~N DIJAN SYSTRAS.A ~ ~ ~ 1C 251D8110 U 1lld A.K Ii; ., 1il t-- 1 "'" 9 -+'2""3/08/1==0-+-U=PDA=J E D = - - - - - - - - - - - + A =.K"'----t='=--+=="--l HANOI METROPOLITAN RAIL TRANSPORT PROJECT BOARD ~ It 1A 31/01/10 Fir.tleaJo A.K BANDl/ANfllKINGllATOOTHl~NQI >- c ~ REVISION DATE OESCRIP'TlON - l ' f Q1El:RJJl'f ~ ~ i SCIASOI NGAY NQI 01.1o1G 80'AOOI !Elt IQIJ PROJECTDIRECTORIGIAM!lOcDI./AN: Alain B6chereau Y=OZ=O Y=OZ=O Y=OZ=O SECTION AT CHAINAGE MAT CAT T1!3 !J'TRlNH NUM Y 4 2880 -103 5 2376 -106 6 2920 -101 7 2136 -109 8 3160 -98 9 1896 -111 10 3400 -96 11 1856 -113 22 1982 -270 44 1527 -2008 SECTION AT CHAINAGE MAT CAT T1J3 lJTRlNH 0 0 NUM Y z 3 2600 -271 4 2735 -103 5 2360 -106 6 2975 -100 7 2120 -109 8 3215 -98 9 1880 -111 10 3455 -95 11 1640 -114 21 1920 -562 22 2007 -228 SECTION AT CHAINAGE MAT CAT T11h% TRlNH NUM Y 2509 -611 2 2600 -325 3 2600 -104 4 2840 -102 5 2360 -106 6 3080 -99 7 2120 -109 8 3320 -97 9 1880 -111 10 3560 -94 11 1640 -114 21 2002 -230 22 2242 -228 Y=OZ=O Y=OZ=O Y=OZ=O NOTES:-L____________________..::::================::::::1------------.GHICHU -AU. DIMENSIONS ARE IN MILLIMETERS. TAT CAC.Ac i<ICH THl/OCTHEO EO'N vr MM. -THETENDONLAYO~T rs SYMMETRICAL TO THE SEGMENT CENTER LINE {Z=O) ~T EWIG CAP iJfl01 Xl/NG VOi El/ONG TAM PHAN E~N (Z=O) - FOR GEllrERAL PIT SCHEME REFER TO DWG. No. PIC-TEC-GST-WVo-JOD-18400-8. - VOi BO-TR PtrrONG TH~. XEM BAN VE slYPIC.TEC.GST-WVQ.-J00.1840CH!. - FOR TEl']IDON ELEVATION AND PLAN VIEW LAYOUT REFER TO DWG. No. PIC-TEc-GST-WVO.J00-18401-8 TO PIC-TEc-GST-WVO.J00-18407-8. - ~ ~T Ell/NG VA BO TRI M~T BANG GAP XEM BAN~ 50 PIC.TEC.GST-WVOJOG-18401-B Di=N PIC.TEC-GST-WVOJOG-18407-6. - FOR PRESTRESSING DETAIL AND~EQUENCES REFER TO DWG. No. PIC-TEC-GST-WVO.JOD-18408-8. ~ CHI Tli::t VA TRINH 111 l/NG SUl:T TRllv" XEM BAiiiVI:SO PIC.TEC.GST-WVQ.-J00.184Q8.a. FILENMIEITtNBANvE: DESIGNED BYTllli;r~ : FORIMTIKl() BANv£: A. K A1 STATUS lT1NH~: Technical Design DAlENGAY: 31/01110 CHECl<EDBYsoAT : n.~•-.-.i"""""""_""_,,_, .,._ __, G. Mauris n whol1orinpor1.,..-ror..,.p,_w111oo.1111opr1or- 1-----,,...--..,.......,,........i permiHionofHRB. CHIEFDESIGl'ERCHOttila,I THI~Kt: Mn .. n0y "'°""°"""-w...,.-.i....,"""""""""'rnOI,....., P. Arnaud .... ~ma-o..,..,ID"llt'*"*'*'""' """· PRO.ECTDlf AN : HANOI PILOTUGKT METRO LINE Sadlon Nhon- Hanoi RalwaySlatlon TimN EllJOt.lG sAT00 THI THIElltMTP HANOi Eoftl Nh&i· Ge H~ NOi TITLEl'ltNBAN1£: NHUE RIVER CROSSING WQ'T SONG NHUI;: DECK - PT - CROSS SECTIONS - 5 / 10 BAN M.!<T cAU - PT - M.!<T cAT - 5 / 10 DRAWINGNO. BANvESO : PIC-TEC-GST-WVO-J04-18414-B 2A
  • 167.
    MAT CAT TJ}!JJ'TRINH NUM Y 1 2489 -417 2 2605 -282 3 2600 -104 4 2840 -102 5 2360 -106 6 3080 -99 7 2120 -109 8 3320 -97 9 1880 -111 10 3560 -94 11 1640 -114 21 2002 -230 22 2242 -228 SECTION AT CHAINAGE MAT CAT TAI LY TRiNH• X=38500 NUM 2 3 2600 -104 4 2840 ·102 5 2360 ·106 6 3080 -99 7 2120 ·109 8 3320 .97 9 1880 ·111 10 3560 -94 11 1640 -114 21 2002 -230 22 2242 -228 51 2289 -584 52 2137 -1059 53 2045 -1336 r sbi I 52 I QI I 53d I I SECTION AT CHAINAGE MAT CAT TAI LY TRlNH" X=42000 NUM Y 2489 -417 2 2605 -282 3 2600 -104 4 2840 -102 5 2360 -106 6 3080 -99 7 2120 -109 8 3320 -97 9 1880 -111 10 3560 -94 11 1640 ·114 21 2002 ·230 22 2242 ·228 51 2420 -837 52 2254 -1086 53 2165 -1329 1----+-----------------<>----+-------< CLIENT: t---+---+---------------l,.__--+---+----l CH09AUTLI: HRB NUM y z 2469 -290 2 2609 -274 3 2600 -104 4 2840 -102 5 2360 -106 6 3080 -99 7 2120 -109 8 3320 -97 9 1880 -111 10 3560 -94 11 1640 -114 21 2002 -230 22 2242 -228 SECTION AT CHAINAGE MAT CATTAILY TRiNH• X=40000 MAT CAT TJ}1~t TRINH NUM y 2449 -274 2 2614 -274 3 2600 -104 4 2840 -102 5 2360 -106 6 3080 -99 7 2120 -109 8 3320 -97 9 1880 -111 10 3560 -94 11 1640 -114 21 2002 -230 22 2242 -228 51 1949 -584 52 1858 -991 53 1744 -1348 I I SECTION AT CHAINAGE MAT CAT TAI LYTRiNH• X=41000 Y=DZ=D --------1 Y=DZ=O 0 0 ~ c,°o~oR - - - - - - --------r __ _ __ NUM y 2449 2 2614 -274 3 2600 ·104 4 2840 ·102 5 2360 ·106 6 3080 -99 7 2120 ·109 8 3320 -97 9 1880 -111 10 3560 -94 11 1640 -114 21 2002 -230 22 2242 -228 51 2420 -584 52 2254 -1086 53 2165 -1329 d1: I 52 1 0 <!I I I I I ,_ -- SECTION AT CHAINAGE MAT CAT TAI LY TRlNH• X=43000 NUM Y 2509 ~11 2 2600 -325 3 2600 -104 4 2840 -102 5 2360 -106 6 3080 -99 7 2120 -109 8 3320 -97 9 1880 -111 10 3560 -94 11 1640 ·114 21 2002 ·230 22 2242 ·228 51 2420 -895 52 2254 -1086 53 2165 -1329 II PROJECT IMPLEMENTATION OONSULTANT lV VAN THIJC HIENDIJ AN SYSTRAS.A PROJECT DIRECTORIGIAM!lOcDI./AA: Alain B6chereau NUM y 2469 2 2609 -274 3 2600 ·104 4 2840 ·102 5 2360 ·106 6 3080 .99 7 2120 ·109 8 3320 .97 9 1880 -111 10 3560 -94 11 1640 -114 21 2002 -230 22 2242 -228 51 2420 ~43 52 2254 -1086 53 2165 -1329 SECTION AT CHAINAGE MAT CAT TAI LYTRlNH" X=44000 FILE NMIEITtNBANvE: DESIGNED BYTllli;r~ : FORIMTIKl() BANv£: A. K A1 NUM Y 3 2600 -104 4 2824 -102 5 2360 -106 6 3064 -99 7 2120 -109 8 3304 -97 9 1880 -111 10 3544 -95 11 1640 -114 21 1982 ·271 22 2194 ·228 51 2420 -895 52 2273 ·1090 53 2185 ·1329 STATIJS lT1NH ~ : Technical Design DAlENGAY: 31/01110 CHECl<EDBYsoAT: n.~ •-'11 """"" "" _""_,,_, .,._ __, G. Mauris n whol1 or in portot.-forany p,_w111oo.1 111opr1or- 1-----...,...---,.....,..-1 permiHionofHRB. CHIEFDESIGNERCHONHla,I THI~Kt : Mn .. n0y "'°""°"""- w'*''II....,"""""""""''"°'...,,...,P. Arnaud .... ~ ma -o..,..,ID"llt'*" *'*' ""' """· Y=DZ=O PRO.ECTDlfm: HANOI PILOTUGKT METRO LINE Sadlon Nhon- Hanoi RalwaySlatlon TimNEllJOt.lG sAT00 THI THIElltMTP HANOi Eloftl Nh&i-Ge H~ NOi TITLEl'ltNBANvE: NHUE RIVER CROSSING WQ'T SONG NHUI;: DECK - PT - CROSS SECTIONS - 6 / 10 BAN M.!<T cAU - PT - M.!<T cAT - 6/ 10 DRAWINGNO. BAN~SO: PIC-TEC-GST-WVO-J04-18415-B 2A
  • 168.
    SECTION AT CHAINAGE MATCAT TAI LYTRlNH• X=46000 NUM Y Z 3 2600 -183 4 2763 -102 5 2360 -106 6 3003 -100 7 2120 -109 8 3243 -98 9 1880 -111 10 3483 -95 11 1640 -114 21 1944 -441 22 2051 -228 51 2420 ~95 52 2334 -1105 53 2165 -1329 SECTION AT CHAINAGE MAT CAT TAI LYTRlNH• X=46380 NUM Y 4 2705 5 2360 6 2945 -101 7 2120 -109 8 3185 -98 9 1880 -111 10 3425 -98 11 1640 -114 22 2002 -228 37 1494 -1890 51 2420 ~95 52 2352 -1109 53 2166 -1329 0 0 0 022 SECTION AT CHAINAGE MAT CAT T~i.!J TRlNH 0 NUM Y z 4 2615 -269 5 2465 -105 8 2855 -101 7 2225 -108 8 3095 -99 9 1985 -110 10 3335 -97 11 1745 -113 22 1920 -062 37 1569 -2185 51 2420 ~95 52 2352 -1109 53 2283 -1324 SECTION AT CHAINAGE MAT CAT TAI LY TRlNH• X=45620 NUM Y Z 3 2600 -271 4 2735 -103 5 2360 -106 6 2975 -100 7 2120 -109 8 3215 -98 9 1880 -111 10 3455 -95 11 1640 -114 21 1920 -082 22 2007 -228 51 2420 ~95 52 2352 -1109 53 2165 -1329 SECTION AT CHAINAGE MAT CAT TAI LYTRlNH" X"47000 NUM Y 4 2680 5 2376 6 2920 -101 7 2136 -109 8 3160 -98 9 1898 -111 10 3400 -98 11 1656 -113 22 1982 -270 37 1527 -2008 51 2420 ~95 52 2352 -1109 53 2188 -1328 SECTION AT CHAINAGE MAT CAT T~!JJ'TRlNH NUM Y 4 2800 -323 5 2480 -105 8 2840 -102 7 2240 -108 8 3080 -99 9 2000 -110 10 3320 -97 11 1760 -112 37 1568 -2168 51 2420 ~95 52 2352 -1109 53 2285 -1324 Y=DZ=O SECTION AT CHAINAGE MAT CAT TAI LY TRlNH" X"46000 NUM Y Z 3 2800 -325 4 2720 -103 5 2360 -106 6 2960 -100 7 2120 -109 8 3200 -98 9 1880 -111 10 3440 -98 11 1840 -114 22 2002 -228 51 2420 -895 52 2352 -1109 53 2165 -1329 SECTION AT CHAINAGE MAT CAT TAI LYTRlNH• X"48000 NUM Y 4 2640 5 2437 6 2880 -101 7 2197 -108 8 3120 -99 9 1957 -110 10 3380 -98 11 1717 -113 22 1944 -441 37 1569 -2165 51 2420 -895 52 2352 -1109 53 2282 -1325 SECTION AT CHAINAGE MAT CAT T~i.IJ TRlNH 0 0 NUM Y 5 2495 -105 8 2825 -102 7 2255 -107 8 3065 -99 9 2015 -110 10 3305 -97 11 1775 -112 36 1558 -1731 37 1563 -2151 51 2420 -895 52 2352 -1109 53 2285 -1324 Y=OZ=O ~~1~~:~--------------------------------------~ 1-------------------------------< CLIENT: t - - - + - - - + - - - - - - - - - - - - - + - - - - + - - - - + - - - l CH09AUTLI: :i: ' ~ ~ ~7 1~ t--~-+3-0I00_1_1-+-2-~-.u-bm-m1-oo-~-lllch-nl~-1-d-.,,--------+A-. K---+----+---l ~ ~ ~ 1C 251D8110 U 1lld A.K Ii; ., 1il t-- 1 "'" 9 --+'2""3/08/1==0-+-'U=POA=J E D = - - - - - - - - - - - + A =.K"'"----i='='"-+=="--l HANOI METROPOLITAN RAILTRANSPORT PROJECT BOARD ~ It 1A 31/01/10 Fir.t - - A. K BAN DI/ANDUONG llATflO Tlll~NQI >- c ~ REVISION DATE OESCRIPTlON - l ' f il1El:RJJl'f ~ ~ i SCIASOI NGAY NQI OlolG 80'AOOI !Elt IQIJ HRB II PROJECT IMPLEMENTATION CONSULTANT lV VAN THIJC Hl~N DIJ AN SYSTRAS.A PROJECTDIRECTORIGIAM!lOcDI./AN: Alain B6chereau -ALL DIMENSIONS ARE IN MILLIMETERS. TATCACAC KICH THU'OCTHEOOONVI MM. - THg.TJ:ND01:"11 LAYOUT IS SYMMETRICAL TO THE SEGMENT CENTER LINE (Z=O) ~T """'G CAP'""DOI Xl/NG W I aO'ONG TAMPHAN a~ (Z"()) - FOR GENERAL PfT SCHEME.REl'ER TO DWG. No. PIC-TEC-GST-WVO-J00-18400-B. - VOi BO"TRf PIT TONG TH£, XEM BANVl:SO PIC-TEC-GST-WVO._JOC>-184llD-B. - FOR TE~DON. 1ELEVATION~1ND P.LAN VIEW LAYOUT REFER TO DWG. No. PIC-.JEC-GST-WVO-J00-18401-B TO PIC-TEC-GST-WVO-J00-18407-B. -VE M,!.Tf)IJNG V" BO TRI M,!.T """'G cAPXEM BAN VE SO PIC-TEC-GST-WVO._J00.18401-B f)o;N PIC-TEC-GST-WVO._J00.184ll7-B. - FOR PRESTRESSIN~ DETAIL AND SEQUENCES.REFER TO DWG. No. PIC-TEC-GST-WVO-JOG-18408-B. VE CHI Tie!T VA TRINH TV U'NG SuAT TRU'OC XEM BAN VE SO PIC-TEC-GST-WVO._JQ[).18408-6. FILENMIEITtNBANvE: OESIGNED BYTllli;r~ : FORIMTIKl() BANv£: A. K A1 STATUS lT1NH~: Technical Design OAlENGAY: 31/01110 CHECl<EOBYsoAT : n.~•-.-.i"""""""_""_,,_, .,._ __, G. Mauris n whol1orinport.,..-ror..,.p,_w111oo.1111opr1or- 1-----,,....--..,......,,....-1 permiHionofHRB. CHIEFDESIGl'ERCHOttila,I THI~Kt: Mn .. n0y "'°""°"""-w...,.-.i....,"""""""""'rnOI,....., P. Arnaud .... ~ma-o..,..,ID"llt'*"*'*'""' """· PRO.ECTDlf AN : HANOI PILOTUGKT METRO LINE Sadlon Nhon- Hanoi RalwaySlatlon TimN EllJOt.lG sAT00 THI THIElltMTP HANQI Eloftl Nh&i-Ge H~ NOi TITLEl"ltNBAN1£: NHUE RIVER CROSSING WQ'T SONG NHUI;: DECK - PT - CROSS SECTIONS - 7 / 10 BAN M.!<T cAU - PT - M.!<T cAT - 7/ 10 DRAWINGNO. BANv£SO: PIC-TEC-GST-WVO-J04-18416-B 2A
  • 169.
    SECTION AT CHAINAGE MATCAT TAI LY TRlNHX"50000 Y=OZ=O NUM y 5 2520 -105 6 2800 -102 7 2280 -107 8 3040 -100 9 2040 -110 10 3280 -97 11 1800 -112 36 1626 -1854 37 1559 -2123 51 2420 -895 0 37 52 2352 -1109 53 2285 -1324 SECTION AT CHAINAGE MAT CAT T1JJJ TRiNH Y=OZ=O 0 0 NUM y z 6 2705 -103 7 2375 -106 8 2945 -101 9 2135 -109 10 3185 -98 11 1695 -111 35 1691 -1599 36 1884 -2019 37 1541 -2019 51 2420 -895 52 2352 -1109 53 2285 -1324 SECTION AT CHAINAGE MAT CAT TAI LYTRlNHX=65000 Y=OZ=O NUM y 6 2600 -320 7 2480 -105 8 2840 -102 9 2240 -108 10 3080 -99 11 2000 -110 35 1748 -1926 36 2007 -1926 ~37 1408 -1926 0 0 35 37 51 2420 -895 52 2352 -1109 53 2285 -1324 1-------------------------------< CLIENT: t - - - + - - - + - - - - - - - - - - - - - + - - - - + - - - - + - - - - l CH09AUTLI: ~ '~ ~ ~7 1~ t--~-+3-0I00_1_1 -+-2-~-.u-bm-m1-oo-~-lllch-nl~-1-d-.,,--------+A-. K---+----+----l NUM 5 8 7 8 9 10 11 36 37 51 52 53 NUM 6 7 8 9 10 11 35 36 37 51 52 53 NUM 7 8 9 10 11 34 35 36 37 51 52 53 HRB SECTION AT CHAINAGE MAT CAT TAI LYTRlNHX"51000 y 2560 -186 2760 -102 2320 -107 3000 -100 2080 -109 3240 -98 1840 -112 1734 -2021 1551 -2078 2420 -895 2352 -1109 2285 -1324 SECTION AT CHAINAGE MAT CAT T1!JJ TRiNH y z 2680 -103 2400 -106 2920 -101 2160 -108 3160 -98 1920 -111 1708 -1729 1949 -1997 1509 -1997 '1 ff2420 -895 2352 -1109 2285 -1324 SECTION AT CHAINAGE MAT CAT TAI LYTRlNHX=55380 y z 2495 -105 2825 -102 2255 -107 3065 -99 2015 -110 1724 -1496 1747 -1916 2010 -1916 g ~ 0 1411 -1916 37 2420 -895 2352 -1109 2285 -1324 II PROJECT IMPLEMENTATION OONSULTANT lV VAN THIJC Hl~N DU' AN SYSTRAS.A ~ ~ ~ 1C 251D8110 U 1lld A.K Ii; ., 1il t-- 1 "" 9 --+'2""3/08/1==0-+-'U=PDA= J E D = - - - - - - - - - - - +A=.K"'----F-'="-+=="---l HANOI METROPOLITAN RAIL TRANSPORT PROJECT BOARD ~ It 1A 31/01/10 Fir.tleaJo A.K BANDl/ANfllKINGllATOOTHl~NQI >- c ~ REVISION DATE OESCRIP'TlON - l'f Q1El:RJJl'f ~ ~ i SCIASOI NGAY NQIOlolG 80'AOOI !Elt IQIJ PROJECT DIRECTORIGIAM!lOcIll./AA: Alain B6chereau SECTION AT CHAINAGE MAT CAT TAI LY TRlNHX"52000 Y=OZ=O Y=OZ=O NUM y 5 2600 -328 8 2720 -103 7 2360 -106 6 2960 -100 9 2120 -109 10 3200 -98 11 1880 -111 36 1843 -2033 37 1544 -2033 ~ 0 51 2420 -895 37 52 2352 -1109 53 2285 -1324 SECTION AT CHAINAGE MAT CAT TAI LYTRiNH Y=OZ=O " X=54DDD Y=OZ=O NUM y 6 2640 7 2440 8 2880 9 2200 10 3120 -99 11 1960 35 1736 36 2003 37 1433 ~ 51 2420 52 2352 -1109 53 2285 -1324 SECTION AT CHAINAGE MAT CAT TAI LY TRlNHX"56000 Y=OZ=O Y=OZ=O NUM y 7 2520 -105 8 2800 -102 9 2280 -107 10 3040 -100 11 2040 -110 34 1741 -1632 35 1717 -1900 36 2015 -1900 g ~ ~37 1416 -1900 51 2420 -895 52 2352 -1109 53 2285 -1324 NOTES:~--------------------------------------~ GHICHU -ALLDIMENSIONS ARE IN MILLIMETERS. TJl.t CACAC i<ICH THLJOC THEOOON VI MM. - TH~,T,ENDON LAYOIJT IS SYMMETRICAL TO THE SEGMENT CENTER LINE (Z=O) WIT """'G CAP i..AEOI XLJNG VOi EJLJO'NG TAM PHANEl°"'N (Z=D) - FOR GENERAL PIT SCHEME REFER TO DWG. No. PIC-TEC-GST-WVO-J00-18400-B. - VOi BO-TRIPFTTONG THE, XEM 81N VE SCYPIC-TEC-GST-WVO-J00-18400-a. - FOR TENDON ELEVATION AND PLAN VIEW LAYOUT REFER TO DWG. No. PIC-TEC-GST-WVO-J00-18401-B TO PIC-TEC-GST-WVO-J00-18407-B. -ve WITElO'NG VA 80 TR1 M}!.T BANG cAPXEM BAN ve soPIC-TEC-GST-WVO-JDl>-18401-BDEN PIC-TEC-GST-WVO-JDG-18407-a. - FOR PRESTRESSING DETAILAND SEQUENCES REFER TO DWG. No. PIC-TEC-GST-WVO-J00-18406-B. ve CHI TieT VA TRINH TU' LING SuAT 1Rl!OCXEM BAN ve so PIC-TEC-GST-WVO-JDl>-184Q8-8. FILE NMIEITtNBANvE: DESIGNED BYTllli;r~ : FORIMTIKl() BANv£: A. K A1 STATIJS lT1NH ~ : Technical Design DAlENGAY: 31/01110 CHECl<EDBYsoAT: n.~•-'11 """"" "" _""_,·_,.,._ __, G. Mauris n wholo or in portor.-forln!'P'-wlhoo.l lhoprior- 1-----,,....--..,.......,,..--1 permiHionofHRB. CHIEFDESIGl'ERCHONHla,I THI~Kt: Mn ....,. "'°""°"""- w"'"".....,"""""""""''"°'...,,...,P.Arnaud .... ~ ma -o..,..,ID'llt'*" *.., ""' """· PRO.ECTDlfm: HANOI PILOTUGKT METRO LINE Sadlon Nhon- Hanoi RalwaySlatlon TimNEllJOt.lG sAT00 THI THIElltMTP HANOi Eoftl Nh&i -Ge H~ NOi TITLEl'ltNBANvE: NHUE RIVER CROSSING WQ'T SONG NHUI;: DECK - PT - CROSS SECTIONS - 8 / 10 BAN M.!<T cAU - PT - M.!<T cAT - 8 / 10 DRAWINGNO. BANv£SO: PIC-TEC-GST-WVO-J04-18417-B 2A
  • 170.
    SECTION AT CHAINAGE MATCAT TAI LYTRlNHX"57000 Y=OZ=O NUM y 7 2560 -188 8 2760 -102 9 2320 -107 10 3000 -100 11 2080 -109 34 1765 -1818 35 1621 -1880 36 2023 -1880 0 37 1424 -1880 37 51 2420 -895 52 2352 -1109 53 2285 -1324 SECTION AT CHAINAGE MAT CAT TAI LYTRlNHX"59000 Y=OZ=O NUM y 8 2680 -103 9 2400 -106 10 2920 -101 11 2160 -108 33 1798 -1524 34 1778 -1831 35 1608 -1831 36 2037 -1831 ~ Si 9;~ 37 1438 -1831 51 2420 -895 52 2352 -1109 53 2285 -1324 SECTION AT CHAINAGE MAT CAT TAI LYTRlNHX-61380 Y=OZ=O NUM y 9 2495 -105 10 2825 -102 11 2255 -107 32 1764 -1369 33 1989 -1879 34 1791 -1789 35 1621 -1789 36 2050 -1789 37 1451 -1789 51 2420 -895 52 2352 -1109 53 2285 -1324 1-------------------------------< CLIENT: t - - - + - - - + - - - - - - - - - - - - - + - - - - + - - - - + - - - - l CH09AUTLI: :i: ' ~ ~ ~7 1~ t--~-+3-0I00_1_1-+-2-~-.u-bm-m1-oo-~-lllch-nl~-1-d-.,,--------+A-. K---+----+----l HRB SECTION AT CHAINAGE MAT CAT TAI LY TRlNH" X"58000 NUM Y 7 2600 -330 8 2720 -103 9 2360 -106 10 2960 -100 11 2120 -109 34 1772 -1848 35 1602 -1848 36 2032 -1848 37 1432 -1848 51 2420 -895 52 2352 -1109 53 2285 -1324 0 0 0 0 36 34 36 37 SECTION AT CHAINAGE MAT CAT TAI LYTRlNH• X=60000 NUM Y 8 2640 -176 9 2440 -106 10 2880 -101 11 2200 -108 33 1878 -1665 34 1783 -1815 35 1613 -1815 36 2042 -1815 37 1443 -1815 51 2420 -895 52 2352 -1109 53 2285 -1324 SECTION AT CHAINAGE MAT CAT TAI LYTRlNH• X=62000 NUM Y 9 2520 -105 10 2800 -102 11 2280 -107 32 1830 -1467 33 2039 -1649 34 1796 -1774 35 1626 -1774 36 2055 -1774 37 1456 -1774 51 2420 -895 52 2352 -1109 SECTION AT CHAINAGE MAT CAT TAI LY TRlNHX=58380 Y=OZ•O NUM y 8 2705 -103 9 2375 -106 10 2945 -101 11 2135 -109 33 1748 -1422 34 1774 -1842 35 1604 -1842 36 2034 -1842 96 g9; g37 1434 -1842 51 2420 -895 52 2352 -1109 53 2285 -1324 SECTION AT CHAINAGE MAT CAT TAI LYTRlNHX-61000 Y•OZ•O NUM y 8 2000 -318 9 2480 -105 10 2840 -102 11 2240 -108 33 1958 -1888 34 1788 -1798 35 1618 -1798 36 2047 -1798 37 1448 -1798 51 2420 -895 52 2352 -1109 53 2285 -1324 SECTION AT CHAINAGE MAT CAT TAI LY TRlNHX=63000 Y•OZ•O NUM y 9 2560 -191 10 2760 -102 11 2320 -107 32 1936 -1601 33 2115 -2119 34 1803 -1751 35 1633 -1751 36 2062 -1751 37 1463 -1751 51 2420 -895 52 2352 -1109 53 2285 -1324 NOTES:~~~~~~~~~-t:::SS::t:fi!i5+~~~~~~~~~~~~~~~~~~~--, GHICHO II PROJECT IMPLEMENTATION OONSULTANT lV VAN THIJC HIEN DIJ AN SYSTRAS.A - All..DIMENSIONS ARE IN MILLIMETERS. TAT cA c.AC KICH THllOC THEO fX7N VI MM. J~[J;~~~~~i~&JJM'b~~~~czt1!J~J"~~ ~~~MENT CENTER LINE (Z=O) - FOR GENERAL PIT SCHEME REFER TO DWG. No. PIC-TEC-GST-WVO-J00-18400.S. -VOi BO "!Rl PITTONG THe, XEM BAN ~ SO PIC-TEC-GST-WVQ,I00-18400-a. -,f.,.OR TEl!IDON ELEVA 1 TION AND PLAN VIEW LAYOUT REFER TO DWG. No. PIC-TEC-GST-WVO-J00-18401-B TO PIC-TEC-GST-WVO-J00-18407-B. - vc ~TflllNGVA BO TR M~TBANGcAPXEM BAN~SO PIC-TEC-GST-WVQ.JOl).18401-B £li;N PIC-TEC-GST-WVQ.JOl).18407-8. - FOR PRESTRESSING DETAIL AND SEQUENCES REFER TO DWG. No. PIC-TEC-GST-WVO-J00-18408.S. ve CHI li~T VA TRINH Tl,I' lJ'NG SuAT TRllO'C XEM BAN VE so PIC-TEC-GST-WVQ.JOl).18400-8. FILENMIEITtNBANvE: DESIGNED BYTlll"1~ : FORIMTIKl() BANv£: A. K A1 STATUS lT1NH~: Technical Design DAlENGAY: 31/01110 PRO.ECTOlfm: HANOI PILOTUGKT METRO LINE Sadlon Nhon- Hanoi RalwaySlatlon TimN EllJOt.lG sAT00 THI THIElltMTP HANOi Eloftl Nh&i-Ge H~ NOi TITLEl'ltNBAN1£: NHUE RIVER CROSSING WQ'T SONG NHUI;: ~ ~ ~ 1C 251D8110 U 1lld A. K Ii; ., 1il t-- 1 "'" 9 --+'2""3/08/1==0-+-'U=POA=JED=-----------+A=.K"'----F-'="-+=="---l HANOI METROPOLITAN RAILTRANSPORT PROJECT BOARD ~ It 1A 31/01/10 Fir.t - - A. K BAN DI/ANfllJONG llATflO THI~NQI CHECl<EDBYsoAT : n.~•-.-.i"""""""_""_,,_,.,._ __, G. Mauris nwholoor in port<r.-forln!'P'-wlhoo.llhoprior- 1-----,,...--..,.......,,.....-1 permiHionofHRB. DECK - PT - CROSS SECTIONS - 9 / 10 BAN M.!<T cAU - PT - M.!<T cAT - 9 / 10 >- c ~ REVISION DATE OESCRIP'TlON - l ' f il1El:RJJl'f ~ ~ i SCIASOI NGAY NQI OlolG 80'AOOI !Elt IQIJ CHIEFDESIGNERCHO ttila,I THI~Kt: Mn ....,. "'°""°"""-w"'"".....,"""""""""''"°'...,,..., P. Arnaud .... ~m1-o..,..,ID'llt'*"*..,""'"""· PROJECT OIRECTORIGIAM!lOcIll./AA: Alain B6chereau DRAWINGNO. BANv£SO : PIC-TEC-GST-WVO-J04-18418-B 2A
  • 171.
    SECTION AT CHAINAGE M~TCAT TAI LY TRINHx~Mooo Y=OZ=O NUM y 9 2600 -332 10 2720 -103 11 2360 -106 32 2042 -1617 33 2199 -1557 34 1811 -1727 35 1641 -1727 36 2070 -1727 37 1471 -1727 51 2420 -895 52 2352 -1109 53 2285 -1324 SECTION AT CHAINAGE M~T CAT TAI LY TRINHx~eeooo Y=OZ=O 00 0 NUM y 10 2640 -174 11 2440 -106 31 1936 -1549 32 2140 -1540 33 2258 -1871 34 1820 -1698 35 1650 -1698 36 2079 -1698 37 1480 -1698 51 2420 -895 52 2352 -1109 53 2285 -1324 SECTION AT CHAINAGE M~T CAT TAI LY TRINHx~eeooo Y=OZ=O 11 0 NUM y 11 2560 -193 31 1957 -1565 32 2143 -1505 33 2258 -1675 34 1827 -1875 35 1657 -1675 36 2087 -1675 37 1487 -1675 51 2420 -895 52 2352 -1109 53 2285 -1324 1------------------------------< CUENT: t - - - + - - - + - - - - - - - - - - - - - + - - - + - - - - + - - - - l CH09AUTLI: :i: ' ~ ~ ~7 1~ t--~-+3-0I00_1_1-+-2-~-.u-bm-m1-oo-~-lllch-nl~-1-d-.,,-------+A-. K--+----+----l HRB SECTION AT CHAINAGE M~T CAT TAI LY TRINHx~l!4380 NUM y 10 2705 -103 11 2375 -106 31 1786 -1302 32 2082 -1812 33 2229 -1551 34 1812 -1722 35 1642 -1722 36 2072 -1722 37 1472 -1722 51 2420 -895 52 2352 -1109 53 2285 -1324 SECTION AT CHAINAGE M~T CAT TAI LYTRlNHX-67000 NUM y 10 2600 -316 11 2480 -105 31 1954 -1574 32 2140 -1514 33 2258 -1884 34 1824 -1884 35 1654 -1684 36 2084 -1684 37 1484 -1684 51 2420 -895 52 2352 -1109 53 2285 -1324 SECTION AT CHAINAGE M~T CAT TAI LYTRlNHx~70000 NUM 11 31 32 33 34 35 36 37 51 52 53 y 2600 -335 1958 -1560 2144 -1500 2258 -1670 1829 -1870 1659 -1870 2086 -1670 1489 -1670 2420 -895 2352 -1109 2285 -1324 II PROJECT IMPLEMENTATION OONSULTANT lV VAN THIJC HIEN DIJ AN SYSTRAS.A ~ ~ ~ 1C 251D8110 U 1lld A.K Ii; ., 1il t-- 1 "" 9 --+'2""3/08/1==0-+-'U=PDA=J E D = - - - - - - - - - - - + A =.K"----i='='--+=="---l HANOI METROPOLITAN RAILTRANSPORT PROJECT BOARD ~ It 1A 31/01/10 Fir.t - - A. K BAN DI/ANDUONG llATflO Tlll~NQI I- c ~ REVISION DATE OESCRIPTlON - l ' f Q1El:RJJl'f ~ ~ i SCIASOI NGAY NQI OlolG 80'AOOI Hilt IQIJ PROJECT lllRECTORIGIAM!lOcIll./AN: Alain B6chereau SECTION AT CHAINAGE MAT CAT TAI LY TRINH Y=O~O " X"65000 d NUM Y 10 2680 -103 11 2400 -106 31 1846 -1406 32 2127 -1591 33 2256 -1575 34 1815 -1713 35 1645 -1713 36 2074 -1713 37 1475 -1713 51 2420 -895 52 2352 -1109 53 2285 -1324 SECTION AT CHAINAGE MAT CAT TAI LYTRlNH Y=O~O • X"68000 0 NUM Y 11 2520 -105 31 1955 -1569 32 2141 -1509 33 2258 -1679 34 1826 -1679 35 1656 -1679 36 2085 -1679 37 1486 -1679 51 2420 -895 52 2352 -1109 53 2285 -1324 SECTION AT CHAINAGE MAT CAT TAI LY TRlNH Y=O~O • x~11 000 NUM y 31 1958 -1560 32 2144 -1500 33 2258 -1670 34 1829 -1670 35 1659 -1670 38 2088 -1870 37 1489 -1670 51 2420 -895 52 2352 -1109 53 2285 -1324 NOTE~:---------------------------------------~ GHICHU - ALL DIMENSIONS ARE IN MILLIMETERS. TAT cAcAc KlCH THLrOC THEO f>O'N VI MM. - THE TENDON LAYOl/T IS SYMMETRICAL TO THE SEGMENT CENTER LINE (Z=O) M~T BANG GAP LA 001 Xl1NG VOi El/ONG TAM PHANOOAN (Z=O) - FOR GENERAL PIT SCHEME REFER TO DWG. No. PIC-TEC~ST-WVO-J00-18400-B. - VOi B0TR[ PIT TONG THi;, XEM BAN VI; SO PIC.TECGST·WVo-J00.1840().B. - FOR TElIDON_ELE'(.~TION AND PLAN VIEW LAYOUT REFER TO DWG. No. PIC-TEC-GST-WVO-J00-18401.S TO PIC-TEC-GST-WVO-J00-18407-8. - V£-~T EllNG VA 00 T1<1 ~T BANG cAP XEM BAN vE:SO PIC.TEC.GST-WVQ.J00.18401-B EION PIC.TEC-GST-WVO-J00.18407-8. - FOR PRESTRESSING DETAIL AND SEQUENCES REFER TO DWG. No. PIC-TEC-GST-WVO-J00-18408-B. V£ CHI Ti~ VA lRINH lV IJNG SUAT TRllO'c XEM BAN~SO PIC-TEC-GST-WVQ.J00.18408-B. FILENMIEITtNBANvE: DESIGNED BYTlll"1~ : FORIMTIKl() BANv£: A. K A1 STATUS lT1NH~: Technical Design DAlENGAY: 31/01110 CHECl<EDBYsoAT : n.~•-'11"""""""_""_,·_,.,._ __, G. Mauris n wholoor in portor.-forln!'P'-wlhoo.llhoprior- 1-----,,...--..,.......,...--1 permiHionofHRB. CHIEFDESIGNERCHOttila,I THI~Kt: Mn ....,. "'°""°"""-w"'""....,"""""""""''"°'...,,...,P.Arnaud .... ~ma-o..,..,ID'llt'*"*..,""' """· PRO.ECTOlfm: HANOI PILOTUGKT METRO LINE Sadlon Nhon- Hanoi RalwaySlatlon TimN EllJOt.lG sAT00 THI THIElltMTP HANOi Eoftl Nh&i-Ge H~ NOi TITLEl'ltNBAN1£: NHUE RIVER CROSSING WQ'T SONG NHUI;: DECK - PT - CROSS SECTIONS - 10 / 10 BAN M.!<T cAU - PT - M.!<T cAT - 10 / 10 DRAWINGNO. BANv£SO : PIC-TEC-GST-WVO-J04-18419-B 2A
  • 172.
    81 81 .... ~g a> NN LOr--~ N ~~~- ::: S! MO LO N~ ....II II II II ~gig~ x >- x >- Ou ~ mu o. ~ 0 CD enu a:= o. ~~,~! :ll a> ~~I~~- «) r::: - N (") 1~ /1 I c=======---- JD ~ ·- ~ " I l l I I• Q1 1 ~ 011 ---;; 0I 11 - rll' - 62,_ ~ <11 I ~ ES1 S1 SA9' SAB' SA7' SA6' SAS' SA4' SA3' ~~~~~'---- ..__ SA2' SA1' ~·---·---·--- -~ _____.______·---·---·---· ------·-'------·---·-----~----·-- - - - - - - -~·- ~ · - - - - - - · - - - · - ....___·--- · - - -· -'----- · - - - . - - - - - - - · - -1---· · - if~ if~_..., t~ HALF BOTTOM PLAN VIEW -w-l>---1 ~cc ~ 1~ MOT NO'A MAT BANG £JAY 1:::: co • SCALE : 1/50 ..... ..., 82 D END OF CABLE 8w 8l:l EIAucAP 0 a> TYL!;: 1/50 0--1 0 0 81 (SHOWING FUTURE ADDITIONAL TENDONS AT LATERAL SPAN:-81 ONLY FOR CLARITY) 81 0 START OF CURVE (CHll RA cAP UNG SUATTRl10c 80 SUNGTRONG TU'O'NG LAI T~I NHIP B~N:.a1 CHIEl~ LAM RO) EIAu Elu'O'NG CONG 0 END OF CURVE CUOI E>llbNG CONG LEGEND ~u 81 81 PASSIVE ANCHORAGE .,... CD ""r--NEO BIElONG CD I'- "'"" ~I;(:; ~ ACTIVE ANCHORAGE ~..,. ~..,. nd N- .... NEC CHO E)()NG II 11 a.. XN )( N <" u.<oN ~5~~ ~ 0 ~ og2 "' (/)~~ :ll Cl)uO: ii: (") ~~ ~ - N ~~!!:!~I- a.. IL I ~ ~ -------=====61 ES1 SA9' SAB' SA7' SA6' SAS' SA4' SA3' 62 lPl'" i I;; ...... ~ ~ PS~r h ~ a SA2' SA1' I r r ~ ~Ir '--. Ir-- I l, ~N )( II II :: ct liilo 61 N )( N )( i;nniix .II II II II N >< ~I ...... HALF LOGITUDINAL ELEVATION ~~ .f,.W .f,. ~~ ct~ g, ~ ..... --i 0 a>~ CJ> "'o NO'A MATfJllNG DOC CDW fl :::! a> --1 CD 81 81 QI 81 82 SCALE: 1/50 62 Ti'LI~: 1150 I NOTE: GHICHU: -ALL DIMENSIONS ARE IN MILLIMETERS. TAT cA cAC KlCH THl/O"cTHEO OONVI MM. ~ ~ CUENT: II PROJECT IMPLEMENTATION CONSULTANT FILE NMIEITtNBANvE: SCALElTfLf:: STATUS lT1NH~: PRO.ECTIDlfAN : HANOI PILOTUGKT METRO LINE Sadlon Nhon-Hanol RalwaySlatlon i ' CH09AUTLI: TU VAN THIJCHIEN DIJAN PIC-TEC-OBT-WVOJ04..1IMID8_2AIMO - Technical Design TimN EllJOt.lG s.l.TElO THI THIElltMTP HANOi Eoftl Nh&i· Ge H~ NOi!'; SYSTRAS.A ~ n HRB DESIGNED BYTlll"1~ : FORIMTIKf() BANv£: DAlENGAY: TITLEI'ltN BAN v£: NHUE RIVER CROSSING If~ A. K A1 31/01110 WQ'T SONG NHUI;:7 ii!~ 2A 30IGl/11 2nd .subml111lon ofl&dinlcaldea9'1 A.K 13. Mourto ... Arnaud ! ~ i 1C 25108110 Uodatlld A.K 13. Mourto ... Arnaud CHECl<ED BYsoAT : DECK - PT - FUTURE ADDITIONAL PT - 1 / 318 23/08/10 UPDATED A.K l:l. Mourio ...Arnaud HANOIMETROPOLITAN RAILTRANSPORT PROJECT BOARD ThLldlawl1111rru11tncti......-mi..t,~i:r~~ !i! t G. Mauris ii whole or in part orUlldfor anr p.,.,._wthcU lh9pricrwrillln ~ 1A 31/01/10 Fir.t-. A.K l:l. Mourio P.Amaud BAN DI/ANElOONG llATflO THI ~ NQI permiHionofHRS. BAN M.!<T cAU - PT · PT BO SUNG TVO'NG LAI - 1 / 3 I~ PROJECTDIRECTORIGIAM!lOcDI./AN: CHIEFDESIGl'ERICHOttila,I THI~ Kt : Mn ...........O..,._Ol) ................. ... ..,.,,mOI........ DRAWINGNO. BANvESO: I2A~ n REVISION DATE OESCRIP'TlON -rr il1El:RJJrr CIEFCFDEJDi ....~ ...-o..,..,ID-.lt'*"*'*'""'"""·IL SCIASOI NGAY NQIOlolG 80'A001 11Elt IQIJ C11lNIGTIEIE Alain B6chereau P. Amaud PIC-TEC-GST-WVO-J04-18450-B
  • 173.
    62 N f:lo LO coo .... ~~ ~81~~ II II ><>- ~~ ~ Cl)(..) 0:: 11. N ~ ~~~I~~ alCl <"l I I _._,, I nl l!T nT / / 11 11 61 / - ,_ ID ID I -- ID ~ I~ IP... h 11 ID~ 1jJ 62'"' I I- -;! - ~1----~~------- SA1 SA2 SA3 SAA '-'--- SA5 SA6 SA7 SA8 SA9 --·---·-~ - · · - - - - - - - - - - - - - - - - - - - · - · - - - · - - - · - ' - - - - ~ ·---· ~·--- - - - - - - - - - - - - - - - · - ·---·---·-~·--- · --- · ~:::: i1'>.::-c.. -c....... El ig HALF BOTTOM PLAN VIEW~ iO I)~ °' i1'::;: MOT NliA MAT BANG fJAY62 61 ....., UI S!:l SCALE : 1/50 • Cl rtll~: 1/5 0 LEGEND .... ~o 62 (SHOWING FUTURE ADDITIONAL TENDONS AT MID SPAN:-62 ONLY FOR CLARITY) D END OF CABLE PASSIVE ANCHORAGE (CHI RA cN> llNG suATTRL!Oc eO SUNGTRONG11/0NGLAI Tl!ol NHIP GIO'A:~2 CHIe~ LAM RO) ElAuc:AP NEOBIElQNG ---*® ACTIVE ANCHORAGE 0 START OF CURVE NEOCHl)f>QNG ElAu f>OONG CONG 0 END OF CURVE CUOI ElLJONG CONG 61 62 62 ~I in in 0 Cl ~fil ~~ CD <"l l!! ... r11 '! r. ii in~ II 11 )(N )(N )( N u..~oN - ~ II> OuZa: N ~ ~Cl) (.} 0:: al ~~!!!~ Cl <"l ~ll.. ,---- 62 pc I~ ~ '"ll'::i 61 ~ ( ~ SA3 SAA SA5 SA6 I SA7 SAS SA9 S3 SA1 SA2 ...! c----___ r:;-----__ c;---__ s----_PS ~ ,....___ ....h ~ ) I ------, ,J --, ,, l r' r;;i::;: ';;' x NX HALF LOGITUDINAL ELEVATIONN )( J,,.c.> .j,. ~I N >< II II };,& .......... 0 g,& ~ gJ NO'A MAT f)lJNG DOCfl:::! en~ CD ...... ig j{';!!l "' Cl .... 1)0 UI !> QO 61 62 I) SCALE : 1150 62 61 62 rtll1.: 1/50 [ NOTE: GHICHO: ~ - ALL DIMENSIONS ARE IN MILLIMETERS.1 TATcAc:AC KfCH THL10cTHEOElONVI MM. ~ ' CUENT: II PROJECT IMPLEMENTATIONCONSULTANT FILENMIEITtNBANvE: SCALElTfLf:: STATUS lT1NH ~ : PRO.ECTDlfAN : HANOI PILOTUGKT METRO LINE Sadlon Nhon-Hanol RalwaySlatlon 'I' CH09AUTLI: lVVAN THIJCHIENDIJAN Technical Design i !'; P IC-TEC-OBT-WVOJ04..111U1-B_2AIM'O - llmNEllJOt.lG sAT00 THITHIElltMTP HANQI Eoftl Nh&i-Ge H~ NOi n SYSTRAS.A ~ If~ HRB DESIGNED BYTlll"1~ : FORIMTIKl() BANv£: DAlENGAY: TITLEITtN BAN ~ : NHUE RIVER CROSSING 7 ii! ~ 2A 30IGl/11 2nd .subml111lon ofl&dinlcaldea9'1 A.K ll. Mourto P. Amaud A. K A1 31/01110 WQ'T SONG NHUI;: ! ~ i 1C 25108110 Uodatlld A.K ll. Mourto P. Amaud CHECl<EDBYsoAT: !i! t 18 23/08/10 UPDATED A.K [l. Mourio P.Amaud HANOI METROPOLITAN RAIL TRANSPORT PROJECT BOARD ThLldlawl1111 rru11tnct i. .....-mi..t,~ i:r~ ~ DECK - PT - FUTURE ADDITIONAL PT - 2 / 3 G. Mauris ii whole or in part orUlldfor anr p.,.,._wthcU lh9pricrwrillln ~ 1A 31/01/10 Fir.t-. A.K P. Mourio P.Amaud BAN DI/AN flOONG llATflO THI ~ NQI permiHionofHRS. BAN M.!<T cAU - PT - PT BO SUNG TVO'NG LAI - 2 / 3 I ~ PROJECTDIRECTORIGIAM!lOcDI./AN: CHIEFDESIGNERI CHONHla,I THI~ Kt : ~ n REVISION DATE OESCRIP'TlON - l'f Q1El:RJJl'f CIEFCFDEJDi Mn ..... .....O..,._ oo)..,...................,.,,mOI........ DRAWINGNO.BAN~SO : I2AIL SCIASOI NGAY NQIl:llMG 80'A001 11Elt IQIJ C11lN11i1111Elt Alain B6chereau P. Amaud ....~ ...-o..,..,ID'llt'*"*'*'""'"""· PIC-TEC-GST-WVO-J04-18451-B
  • 174.
    SECTION AT CHAINAGE MATCAT TAI LY TRlNH" X"480 NUM Y 61 1344 SECTION AT CHAINAGE MAT CAT TAI LYTRlNH" X=37198 NUM Y 61 1699 62 1307 SECTION AT CHAINAGE MAT CAT T1!7 lJ'TRlNH NUM Y 62 1000 62 0 1------------------------------< CLIENT: t---+---+-------------+---+----+----l CH09AUTLI: HRB SECTION AT CHAINAGE MAT CAT TAI LY TRlNH• x~11500 NUM Y 61 1001 61 0 Y=4JZ=O SECTION AT CHAINAGE MAT CAT TAI LYTRlNH" X"23500 NUM Y 61 1003 61 0 SECTION AT CHAINAGE MAT CAT T1JJJ' TRlNH SECTION AT CHAINAGE MAT CAT TAI LY TRlNH• X=53500 NUM Y 61 1832 62 1258 II PROJECT IMPLEMENTATION OONSULTANT lV VAN THIJC HIEN DIJ AN SYSTRAS.A PROJECTOIRECTORIGIAM!lOcIll./AN: Alain B6chereau NUM Y 62 1003 62 0 NOTES:~--------------------------------------~ GHICHU • AU. DIMENSIONS ARE IN MILLIMETERS. TA'T CACAC l<ICH THl!O'tTHEO EJON VI MM. ·THETENDON LAYOUT IS SYMMETRICAL TO THE SEGMENT CENTER LINE (Z=O) M.!IT B»IG CAP i..AEOI Xl!NG VOi Ell/ONG TAM PHAN El°"'N (Z~D) • FOR GEN 1 ERAL PIT SCHEME REFER TO DWG. No. PIC·TEC-GST·WVO.JOD-18400-8. -VOi eO-lR PtrrONG THI:, XEM 81N VE so PIC-TEC-GST-WVO-J00-184DO-a. - FOR TEl')IDON ELEVATION AND PLAN VIEW LAYOUT REFER TO DWG. No. PIC-TEc.GST-WVO-JD0-18401-B TOPIC-TEc.GST-WVO-JD0-18407-B. -v£ M.!ITEll/NG VA BO TRI M~T BANG GAPXEM BAN v£ 50 PIC-TEC-GST-WVo-10().18401-B EJi::N PIC-TEC-GST-WV0-10().18407.a. - FOR PRESTRESSING DETAIL AND SEQUENCES REFER TO DWG. No. PIC-TEC-GST-WVO-J0()..18408-8. v£ CHI TilOTVATRlNH TV llNG SuAT TRlfOC XEM BAN v£SO PIC-TEC-GST-WVO-J00-18408-8. FILENMIEITtNBANvE: DESIGNED BYTlll"1~ : FORIMTIKl() BANv£: A. K A1 STATUS lT1NH~: Technical Design DAlEINGAY: 31/01110 CHECl<EOBYsoAT : n.~•-'11"""""""_""_,·_,.,._ __,G. Mauris nwhol1or in portot.-foranyp,_w111oo.1111opr1or- 1-----,,....--..,.......,,......i permiHionofHRB. CHIEFDESIGNERCHO NHla,I THI~Kt: Mn .. n0y "'°""°"""-w"'"".....,"""""""""'rnOI,....., P.Arnaud .... ~ma-o..,..,ID'llt'*"*'*'""'"""· PROJECTDlfAN : HANOI PILOTUGKT METRO LINE Sadlon Nhon- Hanoi RalwaySlatlon TimN EllJOt.lG sAT00 THI THIElltMTP HANOi Eoftl Nh&i-Ge H~ NOi TITLEl'ltNBANvE: NHUE RIVER CROSSING WQ'T SONG NHUI;: DECK - PT - FUTURE ADDITIONAL PT - 3 / 3 BAN M.!<T cAU - PT - PT BO SUNG TVO'NG LAI - 3 / 3 DRAWINGNO. BAN~SO : PIC-TEC-GST-WVO-J04-18452-B 2A
  • 175.
    22000 ·!5· ·~:~ Y-OZ-i --·---81~---· SECTION-1 MATCAT-1 SCALE: 1/25 l'f' LI; : 1125 61000 1410 1250 - - - ~1C___ - - 95A 95C - - · - · - - - · - - t - - - - - - - - - 1200 1410 1250 Y=OZ= --·---81A9 982A ___ SECTION-2 MATCAT-2 SCALE: 1125 l'f' LI; : 1125 1200 1410 1250 · ---·~1c___ --- 91A 92A 92C 91C --·----e-e-----·--t--- ~- - - 6 940 940 6 NOTES: -----------------------------------------~ - ALL DIMENSIONS ARE IN MILLIMETERS. - TAT cA KICH THlJO'c TINH THEO tlON VI MILIMET. - GALVANIZED STEEL STRAIGHT 4T15 DUCTS TO BE LEFT FOR EMERGENCY PRESTRESSING ADJUSTMENT OF POST - ONG cAPTH~P THANG ~ K~M 4T15 tll10'C tl~ ~I PHl,JC Vl,J tll ~u CHINH DI/ ONG UJC KHAN cAP Ho,;cUJC K~O SAU 1RONG TENSIONING FORCE IN CASE OFA TOO LOW ACTUAL TRANSMISSION COEFFICIENT. DUCT NO. 81A, 81C, 82A, 82C, 91A, 91C, 1Rl10'NG HQ'P HE SO TR~N THl/C ~RAT THAP. MANG s6 81A, 81C, 82A, 82C, 91A, 91C, 92A, 92C, 818, 810, 828, 820, 95A, 92A, 92C, 81 B, 81D, 82B, 82D, ~ 95C, 95B, 95D. 95C, 958, 950. - EMERGENCY DUCTS NOT USED FOR ADJUSTMENT SHALL BE GROUTED AT THE SAME TIME AS OTHER DUCTS OF THE SPAN. ~ -cAc ONG KHAN cAP KHONG tllJO'C SCI' Dl,JNG tl~ tll~U CHINH PHAI tlU'QC PHUN VO'A CUNG LOC VO'I cAc ONG KHAC COA NHIP ~ '~ l!; n~ ~ ~ 7 i ~ ! ! ti ~ ~~ ~ ',!! ~ n0.. t----+---t----------------+----+-----t>------i CLIENT: 1----+---1----------------+----+-----11-------1 CHOEIAUnr: HRB 2A 3<Wl/11 2nd •ubmi111ion ofledinicaldllllign 1----+---1----------------+-A.-K---+----+----i HANOI METROPOLITAN RAIL TRANSPORT PROJECT BOARD 1A 2Mllltl0 Fim-. REVISION DATE SC/ADO! NGA.Y DESCRIPTION NQI CUNG SO'A DOI A. K BAN DI/ANDUONG sATflO lHIHAN(ll DelllNEDl!Y 1111trK£ IH!llEDl!Y 1111.r II PROJECT IMPLEMENTATION CONSULTANT TV VJN THVC Hl~N DIJ AN SYSTRAS.A PROJECT DIRECTORIGIAMElOcDI/AN : Alain B'9chereau I I I I I I I I I I I I I I 91A 1I I I I I I I I I I I I I I I I I I I I I I I I I 1192A I I I I I I I I I I 940 940 92C I I I I I I I I I I I I I I I 1191C I I I I I I I I I I PLAN VIEW TOP CABLE MAT BANG CAP DAY' SCALE : 1125 l'f' LI; : 1125 1250 1250 I 11 I I II I I II I I II I I 11 I I 11 I I II I I II I I II I I 11 I I 11 I I II I I II I I I II I I 81A1 I 11 82A 82C I 81C II II I I I I I I II II I I I I I I ALENMIEITtN BAN'IE: DESIGNED BYTll1£r~ : A. K 11 I I 11 I I II I I II I I II I I 11 I I 11 I I II I I II I I II I I 11 PLAN VIEwlroP CABLE MAT BANG CAP" SCALE : 1125 l'f' LE : 1125 FORIMTI~BAN v£ : A1 STATUS lT1NH T~: Technical Deeign DATEI NGAY: 25/08110 ONGOOQC ~ ~ TRLn'.7c KHI ElllC FOR BOTTOM EMERGENCY DUCTS(GROllTING). CHO cN; ONG KHAN cAPCOOi (PHUN WA) PRO.ECTI DI/AN : HANOI PILOTUGKT METROLINE Sadlon Nhon- Hrml RalwaySlllllan ru~N WONG sAT00 THI THIDlt:MTPHANOi Eo911 Nh&i· Ge H~ NOi TITlfll'tNBANv£: NHUE RIVER CROSSING DECK - PT - EMERGENCY PT DRA'MNGNO.BAN~ SO : PIC-TEC-GST-WVO-J04-18460-B 2A