Bharti Vidyaprrth's Instute of Technology
Date Initial Remarks
CLASS :- SYCE
ROLL NO. 41
YEAR :- 2023-24
SCALE :- N.T.S.
SHEET NO :-05
TITLE :-DRAW THE GIVEN FIGURES
ACCORDING TO CARTESIAN
COORDINATE SYSTEM
PRACTICAL NO. 05
(0,5)
(0,5)
(0,4)
(-5,0)
(0,5)
(4,0)
(0,-4) (5,0)
(-5,0) (0,-5)
(-4,0)
(0,0)
NAME :- ADITYA SARPATIL
Bharti Vidyaprrth's Instute of Technology
Date Initial Remarks NAME :- ADITYA SARPATIL
CLASS :- SYCE
ROLL NO. 41
YEAR :- 2023-24
SCALE :- N.T.S.
SHEET NO :- 5
PRACTICAL NO. 05
(-3,0) (0,6) (-3,0) (0,6) (-3,0) (0,9)
(0,0) (11,0)
(-1,0) (0,-6) (-1,0) (0,-6)
TITLE :-DRAW THE GIVEN FIGURES
ACCORDING TO CARTESIAN
COORDINATE SYSTEM
Bharti Vidyaprrth's Instute of Technology
Date Initial Remarks NAME :- ADITYA SARPATIL
CLASS :- SYCE
ROLL NO. 41
YEAR :- 2023-24
SCALE :- N.T.S.
SHEET NO. 06
RTCE KECN P 0 2
(-2,-2)
(-2,2)
(0,-10)
(5,5)
(2,-2)
(2,2)
TITLE :- DRAW THE FIGURES ACCORDING
TO POLAR COORDINATE SYSTEM
PRACTICAL NO. 06
Bharti Vidyaprrth's Instute of Technology
Date Initial Remarks
CLASS :- SYCE
YEAR :- 2023-24
SCALE :- N.T.S.
SHEET NO. 06
TITLE :- DRAW THE FIGURES ACCORDING
TO POLAR COORDINATE SYSTEM
PRACTICAL NO. 06
(-1,-3)
(-1,3)
(-3,0) (-3,0) (0,6)
(0,0)
(1,-3)
(3,0) (3,0) (1,3)
NAME :- ADITYA SARPATIL
ROLL NO. 41
Bharti Vidyaprrth's Instute of Technology
Date Initial Remarks
CLASS :- SYCE
YEAR :- 2023-24
SCALE :- N.T.S.
SHEET NO. 07
TITLE :- USE "DRAW AND MODIFY
COMMAND" TO DRAW THE
PRACTICAL NO. 07
A. USE OF DRAW COMMAND
B. USE OF MODIFIED COMMAND
1) LINE
1) OFFSET
2) EXTEND
3) TRIM
SHAPES.
NAME :- ADITYA SARPATIL
ROLL NO. 41
Bharti Vidyaprrth's Instute of Technology
Date Initial Remarks
CLASS :- SYCE
YEAR :- 2023-24
SCALE :- N.T.S.
SHEET NO. 08
TITLE :- USE "DRAW AND MODIFY
COMMAND" TO DRAW
THE SHAPES.
PRACTICAL NO. 08
1) LINE
1) OFFSET
2) EXTEND
3) TRIM
A. USE OF DRAW COMMAND
. USE OF MODIFIED COMMAND
NAME :- ADITYA SARPATIL
ROLL NO. 41
Bharti Vidyaprrth's Instute of Technology
Date Initial Remarks
CLASS :- SYCE
TILES
DOOR
750
PRACTICAL NO. 16
WEATHERING
COURSE
120
3000
150
2100
600
230
PLINTH
800
150
600
500
400
400
300
PCC (1:2:4)
BOULDERS
DAMP PROOF COURSE
PARAPET
ROOF SLAB
BRICK MASONRY
LINTEL
STEP
PCC(1:2:4)
FOUNDATION
NAME :- ADITYA SARPATIL
ROLL NO. 41
YEAR :- 2023-24
SCALE :- N.T.S.
SHEET NO :- 16
TITLE :- USE "DRAW & MODIFY COMMAND"
TO DRAW C/S OF WALLS SHOWING
DIFFRENT BUILDING COMPONENTS
90
20
90
LANDING
90
200
265
PLAN
PRACTICAL NO. 18
NOTE : ALL DIMENTIONS ARE IN CM
TREAD - 250
RISE - 150
UP
Bharti Vidyaprrth's Instute of Technology
Date Initial Remarks
CLASS :- SYCE
YEAR :- 2023-24
SCALE :- N.T.S.
SHEET NO. 18
TITLE :- DRAW PLAN OF ANY ONE
STAIRCASE DRAWING. (DOG LEGGED)
NAME :- ADITYA SARPATIL
ROLL NO. 41
Bharti Vidyaprrth's Instute of Technology
Date Initial Remarks
CLASS :- SYCE
YEAR :- 2023-24
SCALE :- N.T.S.
SHEET NO. 19
TITLE :- DRAW SECTIONAL ELEVATION OF
STAIR CASE DRAWN IN EXERCISE
PRACTICAL NO. 19
230.00
270.00
255.00 LANDING
230.00
270.00
255.00
LANDING
SECTION A-A ELEVATION
LANDING
90.00
90.00
20.00
230.00
90.00
200.00
A A
190.00
154.25
154.25
NAME :- ADITYA SARPATIL
ROLL NO. 41
Bharti Vidyaprrth's Instute of Technology
Date Initial Remarks
CLASS :- SYCE
YEAR :- 2023-24
SCALE :- N.T.S.
SHEET NO. 20
TITLE :- MARK THE DIMENSIONS
IN THE FIGURES DRAWN IN
EXERCISE NUMBER 5 TO 15
PRACTICAL NO. 020
0.0350 0.0350
0.1050
0.0600
6
0
°
6
0
°
NAME :- ADITYA SARPATIL
ROLL NO. 41
Bharti Vidyaprrth's Instute of Technology
Date Initial Remarks
CLASS :- SYCE
YEAR :- 2023-24
SCALE :- N.T.S.
SHEET NO. 20
TITLE :- MARK THE DIMENSIONS IN
THE FIGURES DRAWN IN EXERCISE
NUMBER 5 TO 15
PRACTICAL NO. 20
0.0300 0.0200 0.0200
0.0900
0.1100
0.0600
NAME :- ADITYA SARPATIL
ROLL NO. 41
Bharti Vidyaprrth's Instute of Technology
Date Initial Remarks
CLASS :- SYCE
YEAR :- 2023-24
SCALE :- N.T.S.
SHEET NO. 20
TITLE :- MARK THE DIMENSIONS
IN THE FIGURES DRAWN IN
EXERCISE NUMBER 5 TO 15
PRACTICAL NO. 020
0.0400
0.0500
0.0200
0.0400
0.0500
NAME :- ADITYA SARPATIL
ROLL NO. 41
Bharti Vidyaprrth's Instute of Technology
Date Initial Remarks NAME :- ADITYA SARPATIL
CLASS :- SYCE
ROLL NO. 41
YEAR :- 2023-24
SCALE :- N.T.S.
SHEET NO. 21
TITLE :- USE AREA COMMAND TO
COMPUTE THE AREA OF
THE GIVEN FIGURE
PRACTICAL NO. 021
0.0350 0.0350
0.1050
0.0600
6
0
°
6
0
°
0.0350
AREA - 0.0074 SQ.M.
Bharti Vidyaprrth's Instute of Technology
Date Initial Remarks NAME :- ADITYA SARPATIL
CLASS :- SYCE
ROLL NO. 41
YEAR :- 2023-24
SCALE :- N.T.S.
SHEET NO. 21
PRACTICAL NO. 21
0.0300 0.0200 0.0200
0.0900
0.1100
0.0600
AREA - 0.0087 SQ.M.
TITLE :- USE AREA COMMAND TO
COMPUTE THE AREA OF
THE GIVEN FIGURE
Bharti Vidyaprrth's Instute of Technology
Date Initial Remarks NAME :- ADITYA SARPATIL
CLASS :- SYCE
ROLL NO. 41
YEAR :- 2023-24
SCALE :- N.T.S.
SHEET NO. 21
PRACTICAL NO. 021
0.0400
0.0500
0.0200
0.0400
0.0500
0.0500
0.0400
0.0500
AREA - 0.0096 SQ.M.
TITLE :- USE AREA COMMAND TO
COMPUTE THE AREA OF
THE GIVEN FIGURE
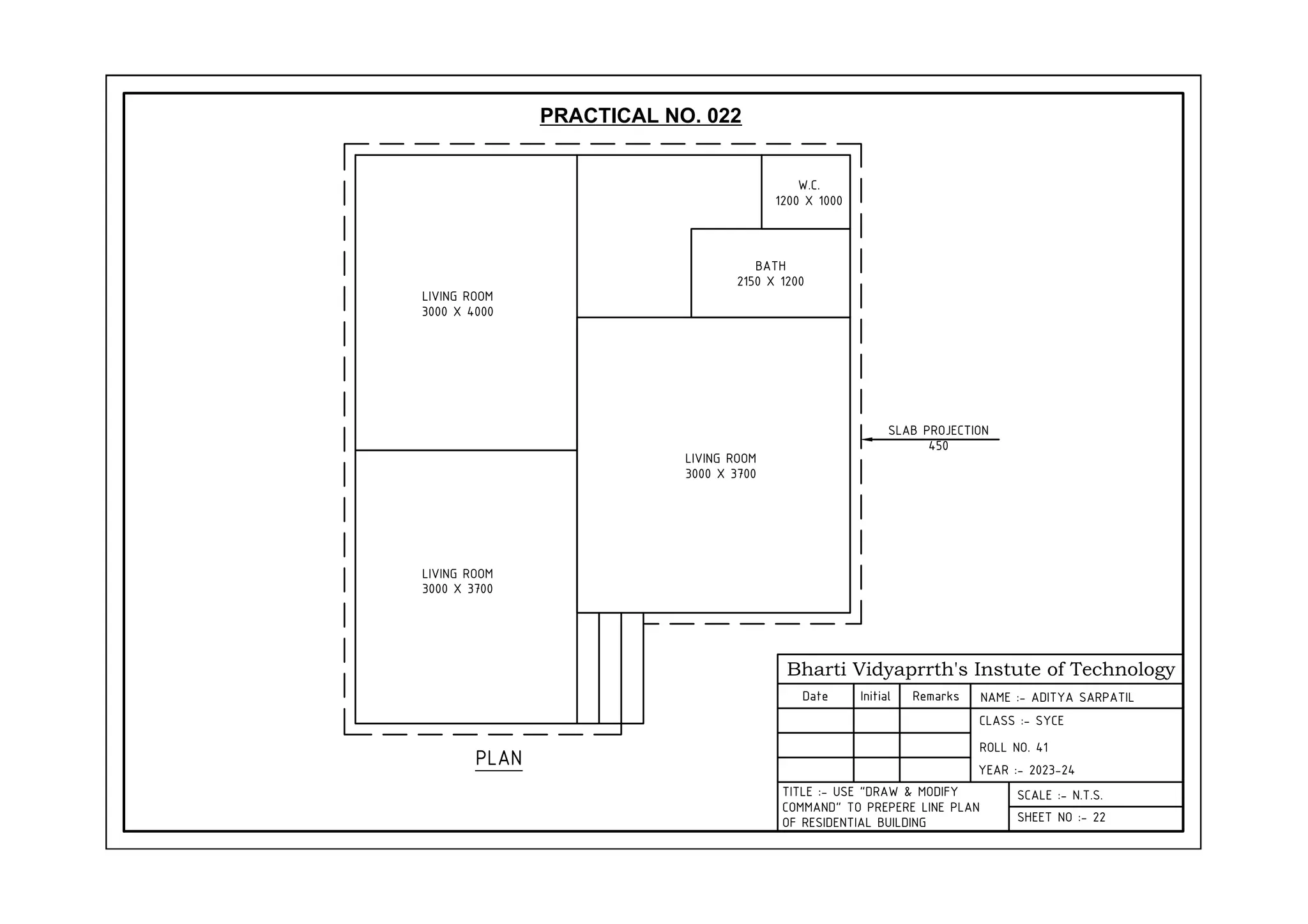
Bharti Vidyaprrth's Instute of Technology
Date Initial Remarks
CLASS :- SYCE
YEAR :- 2023-24
SCALE :- N.T.S.
SHEET NO :- 22
TITLE :- USE "DRAW & MODIFY
COMMAND" TO PREPERE LINE PLAN
OF RESIDENTIAL BUILDING
PLAN
LIVING ROOM
3000 X 3700
LIVING ROOM
3000 X 4000
LIVING ROOM
3000 X 3700
BATH
2150 X 1200
W.C.
1200 X 1000
SLAB PROJECTION
450
PRACTICAL NO. 022
NAME :- ADITYA SARPATIL
ROLL NO. 41
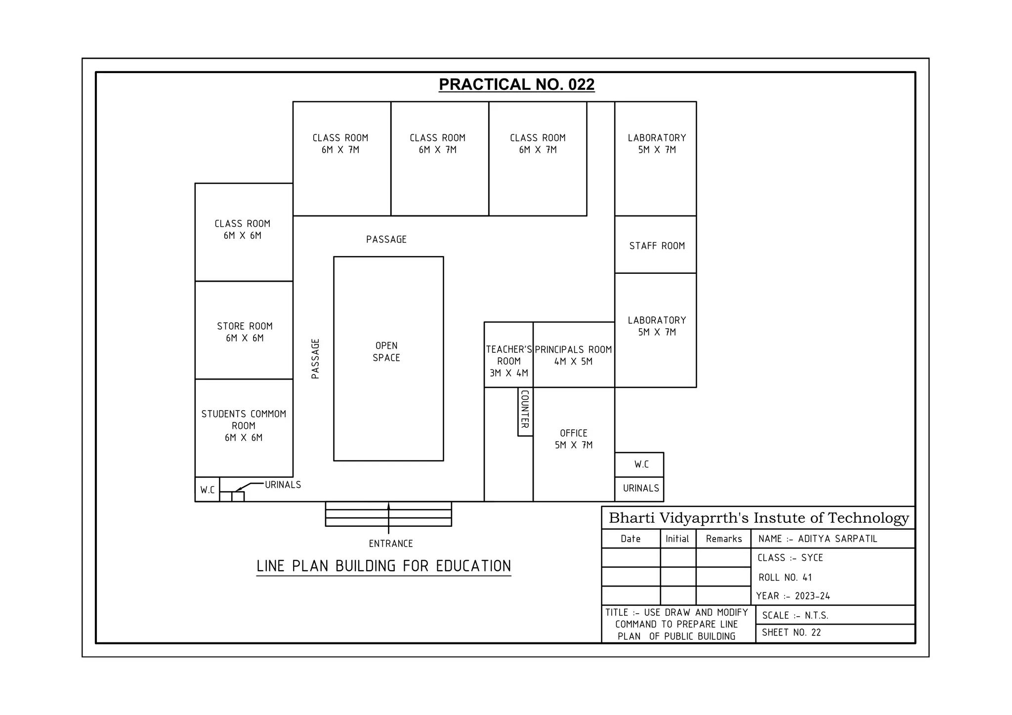
Bharti Vidyaprrth's Instute of Technology
Date Initial Remarks
CLASS :- SYCE
YEAR :- 2023-24
SCALE :- N.T.S.
SHEET NO. 22
TITLE :- USE DRAW AND MODIFY
COMMAND TO PREPARE LINE
PLAN OF PUBLIC BUILDING
CLASS ROOM
6M X 7M
CLASS ROOM
6M X 7M
CLASS ROOM
6M X 7M
CLASS ROOM
6M X 6M
STORE ROOM
6M X 6M
STUDENTS COMMOM
ROOM
6M X 6M
LABORATORY
5M X 7M
STAFF ROOM
LABORATORY
5M X 7M
PRINCIPALS ROOM
4M X 5M
OFFICE
5M X 7M
W.C
URINALS
COUNTER
OPEN
SPACE
PASSAGE
PASSAGE
TEACHER'S
ROOM
3M X 4M
LINE PLAN BUILDING FOR EDUCATION
ENTRANCE
W.C URINALS
PRACTICAL NO. 022
NAME :- ADITYA SARPATIL
ROLL NO. 41
Bharti Vidyaprrth's Instute of Technology
Date Initial Remarks
CLASS :- SYCE
YEAR :- 2023-24
SCALE :- N.T.S.
SHEET NO. 24
TITLE :- USE "DRAW & MODIFY
COMMAND" TO PREPERE PLAN
OF RESIDENTIAL BUILDING
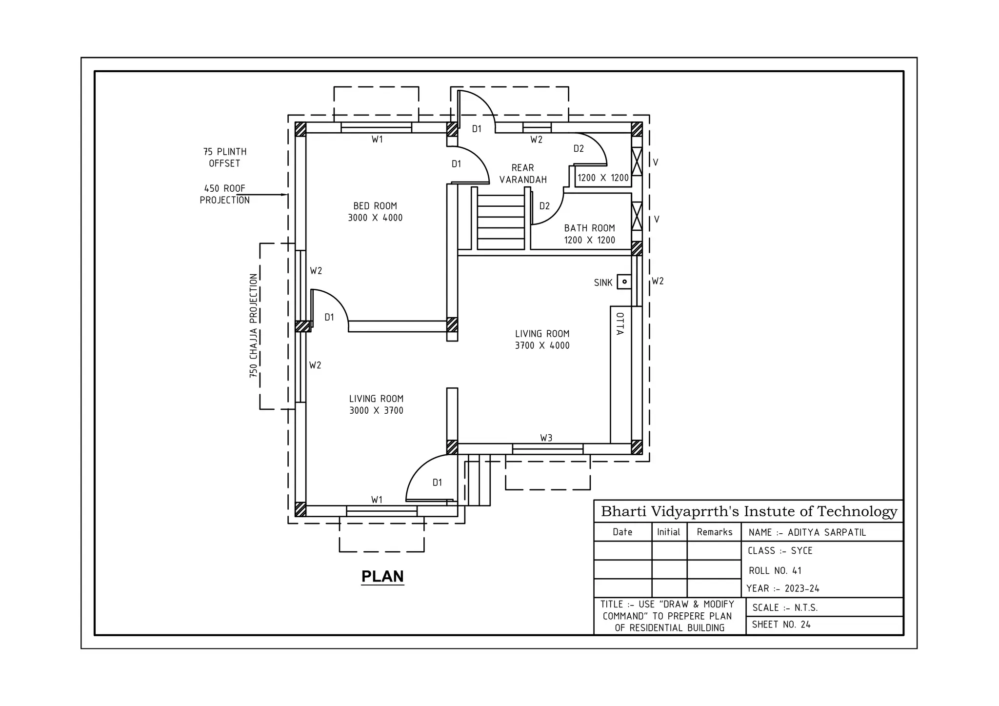
PLAN
LIVING ROOM
3000 X 3700
BED ROOM
3000 X 4000
LIVING ROOM
3700 X 4000
W1 W2
REAR
VARANDAH
D2
D2
1200 X 1200
BATH ROOM
1200 X 1200
W3
D1
W1
W2
W2
D1
D1
D1
SINK
OTTA
V
V
75 PLINTH
OFFSET
450 ROOF
PROJECTION
750
CHAJJA
PROJECTION
W2
NAME :- ADITYA SARPATIL
ROLL NO. 41
Bharti Vidyaprrth's Instute of Technology
Date Initial Remarks
CLASS :- SYCE
YEAR :- 2023-24
SCALE :- N.T.S.
SHEET NO. 25
TITLE :- USE "DRAW AND MODIFY
COMMAND" TO PREPARE ELEVATION
OF RESIDENTIAL BUILDING
ELEVATION
PLINTH LEVEL
SILL LEVEL
LINTEL LEVVEL
CEILING LEVEL
GL
PRACTICAL NO. 25
GL
NAME :- ADITYA SARPATIL
ROLL NO. 41
Bharti Vidyaprrth's Instute of Technology
Date Initial Remarks
CLASS :- SYCE
YEAR :- 2023-24
SCALE :- N.T.S.
SHEET NO. 26
TITLE :- USE "DRAW & MODIFY
COMMAND" TO PREPERE SECTION
OF RESIDENTIAL BUILDING
SECTION 1-1
P.C.C CONC.bed
2350.00
3100.00
150
715
500
150
750
750
1000
1350
100
CEMENT TILES
25MM THICK
LIME CONCRETE
125MM
RUBBLE SOILING
200MM
HARD MURUM FILLING
GL
GL
PRACTICAL NO. 26
NAME :- ADITYA SARPATIL
ROLL NO. 41
Bharti Vidyaprrth's Instute of Technology
Date Initial Remarks
CLASS :- SYCE
YEAR :- 2023-24
SCALE :- N.T.S.
SHEET NO :-29
TITLE :- ISOMETRIC DRAWING
OF SIMPLE OBJECTS
TOP VIEW
RIGHT VIEW FRONT VIEW
ISOMETRIC VIEW
12 12 12
30
12
10
36
10
10
10
36
PRACTICAL NO. 29
NAME :- ADITYA SARPATIL
ROLL NO. 41
Bharti Vidyaprrth's Instute of Technology
Date Initial Remarks
CLASS :- SYCE
YEAR :- 2023-24
SCALE :- N.T.S.
SHEET NO. 29
TITLE :- ISOMETRIC DRAWING
OF SIMPLE OBJECTS
TOP VIEW
RIGHT VIEW FRONT VIEW
ISOMETRIC VIEW
3.00
2.00
1.50
2.00
1.00
PRACTICAL NO. 29
NAME :- ADITYA SARPATIL
ROLL NO. 41
Bharti Vidyaprrth's Instute of Technology
Date Initial Remarks
CLASS :- SYCE
YEAR :- 2023-24
SCALE :- N.T.S.
SHEET NO. 31
TITLE :- DRAW 3-D VIEW OF
OBJECT
PRACTICAL NO. 031
DRAW 3D VIEW OF SIMPLE OBJECT
CUBE SIZE IS (300X300X150)
NAME :- ADITYA SARPATIL
ROLL NO. 41

PDF of CAD civil engineering .12/12/12. doc

  • 1.
    Bharti Vidyaprrth's Instuteof Technology Date Initial Remarks CLASS :- SYCE ROLL NO. 41 YEAR :- 2023-24 SCALE :- N.T.S. SHEET NO :-05 TITLE :-DRAW THE GIVEN FIGURES ACCORDING TO CARTESIAN COORDINATE SYSTEM PRACTICAL NO. 05 (0,5) (0,5) (0,4) (-5,0) (0,5) (4,0) (0,-4) (5,0) (-5,0) (0,-5) (-4,0) (0,0) NAME :- ADITYA SARPATIL
  • 2.
    Bharti Vidyaprrth's Instuteof Technology Date Initial Remarks NAME :- ADITYA SARPATIL CLASS :- SYCE ROLL NO. 41 YEAR :- 2023-24 SCALE :- N.T.S. SHEET NO :- 5 PRACTICAL NO. 05 (-3,0) (0,6) (-3,0) (0,6) (-3,0) (0,9) (0,0) (11,0) (-1,0) (0,-6) (-1,0) (0,-6) TITLE :-DRAW THE GIVEN FIGURES ACCORDING TO CARTESIAN COORDINATE SYSTEM
  • 3.
    Bharti Vidyaprrth's Instuteof Technology Date Initial Remarks NAME :- ADITYA SARPATIL CLASS :- SYCE ROLL NO. 41 YEAR :- 2023-24 SCALE :- N.T.S. SHEET NO. 06 RTCE KECN P 0 2 (-2,-2) (-2,2) (0,-10) (5,5) (2,-2) (2,2) TITLE :- DRAW THE FIGURES ACCORDING TO POLAR COORDINATE SYSTEM PRACTICAL NO. 06
  • 4.
    Bharti Vidyaprrth's Instuteof Technology Date Initial Remarks CLASS :- SYCE YEAR :- 2023-24 SCALE :- N.T.S. SHEET NO. 06 TITLE :- DRAW THE FIGURES ACCORDING TO POLAR COORDINATE SYSTEM PRACTICAL NO. 06 (-1,-3) (-1,3) (-3,0) (-3,0) (0,6) (0,0) (1,-3) (3,0) (3,0) (1,3) NAME :- ADITYA SARPATIL ROLL NO. 41
  • 5.
    Bharti Vidyaprrth's Instuteof Technology Date Initial Remarks CLASS :- SYCE YEAR :- 2023-24 SCALE :- N.T.S. SHEET NO. 07 TITLE :- USE "DRAW AND MODIFY COMMAND" TO DRAW THE PRACTICAL NO. 07 A. USE OF DRAW COMMAND B. USE OF MODIFIED COMMAND 1) LINE 1) OFFSET 2) EXTEND 3) TRIM SHAPES. NAME :- ADITYA SARPATIL ROLL NO. 41
  • 6.
    Bharti Vidyaprrth's Instuteof Technology Date Initial Remarks CLASS :- SYCE YEAR :- 2023-24 SCALE :- N.T.S. SHEET NO. 08 TITLE :- USE "DRAW AND MODIFY COMMAND" TO DRAW THE SHAPES. PRACTICAL NO. 08 1) LINE 1) OFFSET 2) EXTEND 3) TRIM A. USE OF DRAW COMMAND . USE OF MODIFIED COMMAND NAME :- ADITYA SARPATIL ROLL NO. 41
  • 7.
    Bharti Vidyaprrth's Instuteof Technology Date Initial Remarks CLASS :- SYCE TILES DOOR 750 PRACTICAL NO. 16 WEATHERING COURSE 120 3000 150 2100 600 230 PLINTH 800 150 600 500 400 400 300 PCC (1:2:4) BOULDERS DAMP PROOF COURSE PARAPET ROOF SLAB BRICK MASONRY LINTEL STEP PCC(1:2:4) FOUNDATION NAME :- ADITYA SARPATIL ROLL NO. 41 YEAR :- 2023-24 SCALE :- N.T.S. SHEET NO :- 16 TITLE :- USE "DRAW & MODIFY COMMAND" TO DRAW C/S OF WALLS SHOWING DIFFRENT BUILDING COMPONENTS
  • 8.
    90 20 90 LANDING 90 200 265 PLAN PRACTICAL NO. 18 NOTE: ALL DIMENTIONS ARE IN CM TREAD - 250 RISE - 150 UP Bharti Vidyaprrth's Instute of Technology Date Initial Remarks CLASS :- SYCE YEAR :- 2023-24 SCALE :- N.T.S. SHEET NO. 18 TITLE :- DRAW PLAN OF ANY ONE STAIRCASE DRAWING. (DOG LEGGED) NAME :- ADITYA SARPATIL ROLL NO. 41
  • 9.
    Bharti Vidyaprrth's Instuteof Technology Date Initial Remarks CLASS :- SYCE YEAR :- 2023-24 SCALE :- N.T.S. SHEET NO. 19 TITLE :- DRAW SECTIONAL ELEVATION OF STAIR CASE DRAWN IN EXERCISE PRACTICAL NO. 19 230.00 270.00 255.00 LANDING 230.00 270.00 255.00 LANDING SECTION A-A ELEVATION LANDING 90.00 90.00 20.00 230.00 90.00 200.00 A A 190.00 154.25 154.25 NAME :- ADITYA SARPATIL ROLL NO. 41
  • 10.
    Bharti Vidyaprrth's Instuteof Technology Date Initial Remarks CLASS :- SYCE YEAR :- 2023-24 SCALE :- N.T.S. SHEET NO. 20 TITLE :- MARK THE DIMENSIONS IN THE FIGURES DRAWN IN EXERCISE NUMBER 5 TO 15 PRACTICAL NO. 020 0.0350 0.0350 0.1050 0.0600 6 0 ° 6 0 ° NAME :- ADITYA SARPATIL ROLL NO. 41
  • 11.
    Bharti Vidyaprrth's Instuteof Technology Date Initial Remarks CLASS :- SYCE YEAR :- 2023-24 SCALE :- N.T.S. SHEET NO. 20 TITLE :- MARK THE DIMENSIONS IN THE FIGURES DRAWN IN EXERCISE NUMBER 5 TO 15 PRACTICAL NO. 20 0.0300 0.0200 0.0200 0.0900 0.1100 0.0600 NAME :- ADITYA SARPATIL ROLL NO. 41
  • 12.
    Bharti Vidyaprrth's Instuteof Technology Date Initial Remarks CLASS :- SYCE YEAR :- 2023-24 SCALE :- N.T.S. SHEET NO. 20 TITLE :- MARK THE DIMENSIONS IN THE FIGURES DRAWN IN EXERCISE NUMBER 5 TO 15 PRACTICAL NO. 020 0.0400 0.0500 0.0200 0.0400 0.0500 NAME :- ADITYA SARPATIL ROLL NO. 41
  • 13.
    Bharti Vidyaprrth's Instuteof Technology Date Initial Remarks NAME :- ADITYA SARPATIL CLASS :- SYCE ROLL NO. 41 YEAR :- 2023-24 SCALE :- N.T.S. SHEET NO. 21 TITLE :- USE AREA COMMAND TO COMPUTE THE AREA OF THE GIVEN FIGURE PRACTICAL NO. 021 0.0350 0.0350 0.1050 0.0600 6 0 ° 6 0 ° 0.0350 AREA - 0.0074 SQ.M.
  • 14.
    Bharti Vidyaprrth's Instuteof Technology Date Initial Remarks NAME :- ADITYA SARPATIL CLASS :- SYCE ROLL NO. 41 YEAR :- 2023-24 SCALE :- N.T.S. SHEET NO. 21 PRACTICAL NO. 21 0.0300 0.0200 0.0200 0.0900 0.1100 0.0600 AREA - 0.0087 SQ.M. TITLE :- USE AREA COMMAND TO COMPUTE THE AREA OF THE GIVEN FIGURE
  • 15.
    Bharti Vidyaprrth's Instuteof Technology Date Initial Remarks NAME :- ADITYA SARPATIL CLASS :- SYCE ROLL NO. 41 YEAR :- 2023-24 SCALE :- N.T.S. SHEET NO. 21 PRACTICAL NO. 021 0.0400 0.0500 0.0200 0.0400 0.0500 0.0500 0.0400 0.0500 AREA - 0.0096 SQ.M. TITLE :- USE AREA COMMAND TO COMPUTE THE AREA OF THE GIVEN FIGURE
  • 16.
    Bharti Vidyaprrth's Instuteof Technology Date Initial Remarks CLASS :- SYCE YEAR :- 2023-24 SCALE :- N.T.S. SHEET NO :- 22 TITLE :- USE "DRAW & MODIFY COMMAND" TO PREPERE LINE PLAN OF RESIDENTIAL BUILDING PLAN LIVING ROOM 3000 X 3700 LIVING ROOM 3000 X 4000 LIVING ROOM 3000 X 3700 BATH 2150 X 1200 W.C. 1200 X 1000 SLAB PROJECTION 450 PRACTICAL NO. 022 NAME :- ADITYA SARPATIL ROLL NO. 41
  • 17.
    Bharti Vidyaprrth's Instuteof Technology Date Initial Remarks CLASS :- SYCE YEAR :- 2023-24 SCALE :- N.T.S. SHEET NO. 22 TITLE :- USE DRAW AND MODIFY COMMAND TO PREPARE LINE PLAN OF PUBLIC BUILDING CLASS ROOM 6M X 7M CLASS ROOM 6M X 7M CLASS ROOM 6M X 7M CLASS ROOM 6M X 6M STORE ROOM 6M X 6M STUDENTS COMMOM ROOM 6M X 6M LABORATORY 5M X 7M STAFF ROOM LABORATORY 5M X 7M PRINCIPALS ROOM 4M X 5M OFFICE 5M X 7M W.C URINALS COUNTER OPEN SPACE PASSAGE PASSAGE TEACHER'S ROOM 3M X 4M LINE PLAN BUILDING FOR EDUCATION ENTRANCE W.C URINALS PRACTICAL NO. 022 NAME :- ADITYA SARPATIL ROLL NO. 41
  • 18.
    Bharti Vidyaprrth's Instuteof Technology Date Initial Remarks CLASS :- SYCE YEAR :- 2023-24 SCALE :- N.T.S. SHEET NO. 24 TITLE :- USE "DRAW & MODIFY COMMAND" TO PREPERE PLAN OF RESIDENTIAL BUILDING PLAN LIVING ROOM 3000 X 3700 BED ROOM 3000 X 4000 LIVING ROOM 3700 X 4000 W1 W2 REAR VARANDAH D2 D2 1200 X 1200 BATH ROOM 1200 X 1200 W3 D1 W1 W2 W2 D1 D1 D1 SINK OTTA V V 75 PLINTH OFFSET 450 ROOF PROJECTION 750 CHAJJA PROJECTION W2 NAME :- ADITYA SARPATIL ROLL NO. 41
  • 19.
    Bharti Vidyaprrth's Instuteof Technology Date Initial Remarks CLASS :- SYCE YEAR :- 2023-24 SCALE :- N.T.S. SHEET NO. 25 TITLE :- USE "DRAW AND MODIFY COMMAND" TO PREPARE ELEVATION OF RESIDENTIAL BUILDING ELEVATION PLINTH LEVEL SILL LEVEL LINTEL LEVVEL CEILING LEVEL GL PRACTICAL NO. 25 GL NAME :- ADITYA SARPATIL ROLL NO. 41
  • 20.
    Bharti Vidyaprrth's Instuteof Technology Date Initial Remarks CLASS :- SYCE YEAR :- 2023-24 SCALE :- N.T.S. SHEET NO. 26 TITLE :- USE "DRAW & MODIFY COMMAND" TO PREPERE SECTION OF RESIDENTIAL BUILDING SECTION 1-1 P.C.C CONC.bed 2350.00 3100.00 150 715 500 150 750 750 1000 1350 100 CEMENT TILES 25MM THICK LIME CONCRETE 125MM RUBBLE SOILING 200MM HARD MURUM FILLING GL GL PRACTICAL NO. 26 NAME :- ADITYA SARPATIL ROLL NO. 41
  • 21.
    Bharti Vidyaprrth's Instuteof Technology Date Initial Remarks CLASS :- SYCE YEAR :- 2023-24 SCALE :- N.T.S. SHEET NO :-29 TITLE :- ISOMETRIC DRAWING OF SIMPLE OBJECTS TOP VIEW RIGHT VIEW FRONT VIEW ISOMETRIC VIEW 12 12 12 30 12 10 36 10 10 10 36 PRACTICAL NO. 29 NAME :- ADITYA SARPATIL ROLL NO. 41
  • 22.
    Bharti Vidyaprrth's Instuteof Technology Date Initial Remarks CLASS :- SYCE YEAR :- 2023-24 SCALE :- N.T.S. SHEET NO. 29 TITLE :- ISOMETRIC DRAWING OF SIMPLE OBJECTS TOP VIEW RIGHT VIEW FRONT VIEW ISOMETRIC VIEW 3.00 2.00 1.50 2.00 1.00 PRACTICAL NO. 29 NAME :- ADITYA SARPATIL ROLL NO. 41
  • 23.
    Bharti Vidyaprrth's Instuteof Technology Date Initial Remarks CLASS :- SYCE YEAR :- 2023-24 SCALE :- N.T.S. SHEET NO. 31 TITLE :- DRAW 3-D VIEW OF OBJECT PRACTICAL NO. 031 DRAW 3D VIEW OF SIMPLE OBJECT CUBE SIZE IS (300X300X150) NAME :- ADITYA SARPATIL ROLL NO. 41