Residence Design
Kitchen Design
Office Design
Showroom Design
Landscape Design
Site Images
MONIKA
INTERIOR DESIGNER
OFFICE Residence
Project
WORK
LAYOUT
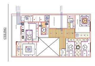
CEILING
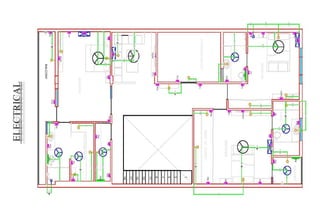
ELECTRICAL
ELECTRICALLEGEND
MASTERBEDROOM
PLAN OF MASTER BEDROOM
WALL ELEVATION “A”
MASTERBEDROOM
WALL ELEVATION “B”
WALL ELEVATION “C”
WARDROBEINTERNALDETAIL
TOILET
PLAN OF TOILET
WALL ELEVATION “A” WALL ELEVATION “B”
TOILET
WALL ELEVATION “C”
WALL ELEVATION “D”
DRAWINGROOM
WALL ELEVATION “B”PLAN OF DRAWING ROOM
WALL ELEVATION “A”
DRAWINGROOM
PLAN OF DRAWING ROOM
WALL ELEVATION “A”
DRAWINGROOM
WALL ELEVATION “C”
WALL ELEVATION “D”
WALL ELEVATION “B”
PRODUCTDETAILS
CENTRE TABLE DETAILS
DINING TABLE DETAILS
DOORDESIGN
GLASS DOOR DESIGNFLUSH DOOR DESIGN
PARTITIONDESIGN
MANDIR
OFFICE Kitchen
Design
WORK
KITCHENDESIGN
KITCHEN PLAN WALL ELEVATION “A”
WALL ELEVATION “C” WALL ELEVATION “B”
KITCHENDESIGN
KITCHEN PLAN WALL ELEVATION “A”
WALL ELEVATION “D” WALL ELEVATION “B”
OFFICE Office
Design
WORK
OFFICE
FURNITURE LAYOUT PLAN
OFFICE
M.D. TABLE DETAILS
OFFICE
WALL ELEVATION
OFFICE
MANAGER’s TABLE DETAILS
OFFICE
MANAGER’s BACK WALL ELEVATION
OFFICE
WORKSTATION WALL ELEVATION
OFFICE
DISPLAY UNIT
OFFICE
M.D. TABLE DETAILS
OFFICE
MANAGER’s TABLE DETAILS
OFFICE
WORKSTATION WALL ELEVATION
OFFICE
FURNITURE LAYOUT PLAN
OFFICE
ELECTRICAL LAYOUT PLAN
OFFICE
ELECTRICAL LAYOUT DETAILS
OFFICE
LCD WALL ELEVATIONPLAN OF M.D. CABIN
SIDE WALL ELEVATION
OFFICE
M.D. TABLE DETAILS
OFFICE
WALL ELEVATION “C”
PLAN OF CONFERENCE ROOM WALL ELEVATION “A”
WALL ELEVATION “B”
OFFICE
CONFERENCE TABLE DETAILS
OFFICE
WORKSTATION DETAILS
OFFICE Showroom
Design
WORK
SHOWROOM
FURNITURE LAYOUT PLAN
SHOWROOM
WALL ELEVATION
SHOWROOM
WINDOW DISPLAY
SHOWROOM
FULL LENGTH MIRROR
CENTRAL DISPLAY UNIT DETAILS
RECEPTION TABLE DETAILS
OFFICE
WORK
LANDSCAPE
DESIGN
LANDSCAPELAYOUT
LANDSCAPELAYOUT
IMAGES Site
Images
DRAWINGROOMIMAGES
BEDROOMIMAGES
BEDROOMIMAGES
CEILINGIMAGES
PARTITIONS
FURNITUREPIECES
FURNITUREPIECES
TOILETIMAGES
OFFICEIMAGES
OFFICEIMAGES
OFFICEIMAGES
OFFICEIMAGES
OFFICEIMAGES
OFFICEIMAGES
SHOWROOMIMAGES
SHOWROOMIMAGES
DESIGNERBOUTIQUEIMAGES
THANKS

Monika (Interior designer) - Portfolio