CHITKARA SCHOOL OF PLANNING AND
ARCHITECTURE
BUILDING CONSTRUCTION AND MATERIALS- V
REPORT ON FIREPLACES AND WARDROBES
SUBMITTED
BY:
SANSKRITI JINDAL
A101060
SEMESTER 5A
DATE OF ISSUE: 1 NOV’2012
DATE OF SUBMISSION: 7 NOV’2012
REMARKS
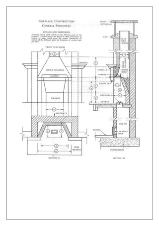
FIREPLACES
 A fireplace is an architectural structure designed to contain a fire for heating, and (cooking). Fireplaces are
also used for the relaxing ambiance they create.
 A fire is contained in a firebox or fire pit; a chimney or other flue allows exhaust to escape.
 A fireplace may have: a foundation, a hearth, a firebox, a mantel, an ash dump door, a chimney crane, a
cleanout door, a grate, a lintel, a lintel bar, over mantel, a chimney breast,a damper, a smoke chamber, a
throat, a flue, a chimney chase,a crown, a cap, a shroud,or a spark arrestor.
Parts of a Fireplace
 The Fireplace Opening is the area between the side and the top faces of the fireplace that serves as the
front of the firebox. The opening should be approximately 1/30 of the room area for the small rooms and
1/65 of the room area for the large rooms. ( Ideal dimension for the single-face fireplace is 36” wide and
26” high. The opening may be 1,2, or 3 sided. More the opening less the efficient fireplace is.)
 The Firebox, the interior of the fireplace, contains the fire and collects the smoke. It the space where the
combustion of the fuel occurs.It is constructed offire resistant bricks set in fire resistant mortar. Min. depth
of the firebox is 20”. The depth is in proportion to the fireplace opening. Depth ensures that smoke does not
discolor the front face of the fireplace.
 The Hearth is built out of a fireproof material, such as bricks, and extends out beyond the fireplace. It
consists ofan inner and outer hearth.
 Inner hearth is the floor of the firebox. It is made of fire resistant bricks and holds the burning fuel.
It should be made of min. 4” reinforced masonry or concrete (the portion that extends in front of
the fireplace can be min.2” thk). It should extend min. 16” in front of the fireplace opening and 8”
beyond each side of the fireplace.
 Outer hearth can be made of noncombustible material. It protects the combustible floor around the
fireplace.
 Ash Dump is the opening in the inner hearth into which ashes can be dumped. It is covered with a small
metal plate that can be removed to provide access to the ash pit. It should be located so that ash removal
does not create hazard to combustible materials.
 Ash Pit is the space below the fireplace where the ashes can be stored.
 Lintel is the reinforced masonry that supports the masonry above the fireplace face. The min. bearing
length for the lintel at each length of the fireplace is 4”.
 Throat is the opening at the top of the firebox that opens into the chimney. The throat should be at least 8”
above the fireplace opening and must be a min. of 4” in depth.
 Damper controls the flow of the air through the fireplace throat.It must be made of ferrous metal that
extends the full width of the throat to prevent heat from escaping up the chimney when fireplace not in use.
Its a movable coveringthat separates the firebox from the spaceabove. Itprevents cold air frommoving
down into the house when no fireis burning.
 The smoke chamber connects the fireplace and the flue. At the bottomof the smoke chamber is the smoke
shelf, which deflects downdrafts and prevents any rain or soot from dropping directly into the fireplace. It
acts as a funnel between the firebox and the chimney. Its shape should be symmetrical so that the chimney
draft pulls evenly and creates an even fire in the firebox. The inside ht. of the chamber can’t be greater than
the inside width of the fireplace opening.Its walls are made of solid masonry units, concrete, or hollow
masonry units filled with grout. The walls must have a min. thk. of 6” including the liner and min 8” if no
lining is provided.
 Smoke Shelf is located at the bottomof the smoke chamber behind the damper. It prevents the downdrafts
from the chimney entering the firebox.
 The chimney surrounds the flue, keeping its heat from contacting any flammable building materials that
may have been used on the home. It the upper extension of the fireplace and is built to carry off the smoke
from the fire. The main components of the chimney are flue, lining, anchors,cap, and spark arrestor.
 Flue is the opening inside the chimney that allows smoke and combustion gases to pass from the
firebox away from the structure. Its size is in proportion to that of the firebox opening and the no.
of open faces of the fireplace. It projects 2” to 3” above the cap.
 The size is equal to either 1/8 or 1/10 of the fireplace opening.
 Chimney Liner is built of fire clay or terracotta. It is built into the chimney to provide a smooth
surface to the fuel wall and to reduce the width of the chimney wall. The liner reduces the buildup
of soot (that causes chimney fire).
 Chimney cap is the sloping surface at the top of the chimney, preventing rain to collect at the top
of the chimney, moisture and animals from entering the flue. It may rotate to block wind gusts.
 Chimney hood is a covering that can be placed over the fuel for protection from the elements. It
can be made of masonry or metal.
 Spark Arrestor is the screen placed at the top of the fuel inside the hood to prevent combustibles
from leaving the flue. It prevents the exiting gases from carrying burning materials onto the roof.
 Chimney damper, which is operated by a cable and closes the chimney at the top to eliminate
downdrafts.
 The surround protects the walls around the fireplace and is often topped by a decorative mantel.
 Fireplace doors can be made of glass or metal. They shut off the air flow when the fire has died down or
the fireplace is not in use.
(The cross-sectional area of the passageway above the firebox, including throat, damper, smoke chamber,
can’t be less than the cross-sectional area of the flue).
Typical Construction Details for a Fireplace
Foundation Ash pit
Ash Dump Ash Caddy
Hearth Firebox
Smoke Chamber Cleanout Door
Fireplace Opening Fireplace Throat or Damper
Smoke Shelf
WARDROBES
 A wardrobe is a standing closet, a large, tall cabinet in which clothes may be hung or
stored, has a door and rails or hooks for hanging clothes, shelves or drawers for putting
them in.
Different spaces required for storing differential clothing in a wardrobe as follow:
Space for
long coats
and jackets
Half height
hanging
Storage arrangement for men’s clothing
Storage arrangements for women’s clothing
Storage arrangement for linen
Closet Dimensions
Depth
 Minimum 24 inches for suits and dresses.
 Minimum 28 inches for coats.
 Minimum 16 inches for work and play wraps stored on hangers.
Heightof Rod
 63 inches for streetdresses.
 45 inches for suits,blouses,and skirts.
 45 inches for men's suits,pants,and shirts.
 72 inches for floor length dresses.
 30 inches for clothing 3- to 5-year-olds.
 45 inches for clothing of 6- to 12-year-olds.
Length of Rod
 Minimum 48 inches per person in household.
 Allow 3 to 4½ inches per lightweightand heavy coats.
 Allow 2½ inches per man's garment.
Shelves
 Allow 3 inches between rods and firstshelf.
 11-inch to 15-inch depth of firstshelf.
 11-inch depth of second shelf.
 8- to 9-inch allowance between shelves.
Standard Heights & Dimensions
ClosetDepth 24"
Custom Closets
Hanging Towers 12"
Shelving/Drawer
Towers
16" or 24"
Luggage
Optimum hanging spaces
Closetdimensionsforchildren

Fireplaces.docx

  • 1.
    CHITKARA SCHOOL OFPLANNING AND ARCHITECTURE BUILDING CONSTRUCTION AND MATERIALS- V REPORT ON FIREPLACES AND WARDROBES SUBMITTED BY: SANSKRITI JINDAL A101060 SEMESTER 5A DATE OF ISSUE: 1 NOV’2012 DATE OF SUBMISSION: 7 NOV’2012 REMARKS
  • 2.
    FIREPLACES  A fireplaceis an architectural structure designed to contain a fire for heating, and (cooking). Fireplaces are also used for the relaxing ambiance they create.  A fire is contained in a firebox or fire pit; a chimney or other flue allows exhaust to escape.  A fireplace may have: a foundation, a hearth, a firebox, a mantel, an ash dump door, a chimney crane, a cleanout door, a grate, a lintel, a lintel bar, over mantel, a chimney breast,a damper, a smoke chamber, a throat, a flue, a chimney chase,a crown, a cap, a shroud,or a spark arrestor. Parts of a Fireplace  The Fireplace Opening is the area between the side and the top faces of the fireplace that serves as the front of the firebox. The opening should be approximately 1/30 of the room area for the small rooms and 1/65 of the room area for the large rooms. ( Ideal dimension for the single-face fireplace is 36” wide and 26” high. The opening may be 1,2, or 3 sided. More the opening less the efficient fireplace is.)  The Firebox, the interior of the fireplace, contains the fire and collects the smoke. It the space where the combustion of the fuel occurs.It is constructed offire resistant bricks set in fire resistant mortar. Min. depth of the firebox is 20”. The depth is in proportion to the fireplace opening. Depth ensures that smoke does not discolor the front face of the fireplace.  The Hearth is built out of a fireproof material, such as bricks, and extends out beyond the fireplace. It consists ofan inner and outer hearth.  Inner hearth is the floor of the firebox. It is made of fire resistant bricks and holds the burning fuel. It should be made of min. 4” reinforced masonry or concrete (the portion that extends in front of the fireplace can be min.2” thk). It should extend min. 16” in front of the fireplace opening and 8” beyond each side of the fireplace.  Outer hearth can be made of noncombustible material. It protects the combustible floor around the fireplace.  Ash Dump is the opening in the inner hearth into which ashes can be dumped. It is covered with a small metal plate that can be removed to provide access to the ash pit. It should be located so that ash removal does not create hazard to combustible materials.  Ash Pit is the space below the fireplace where the ashes can be stored.
  • 3.
     Lintel isthe reinforced masonry that supports the masonry above the fireplace face. The min. bearing length for the lintel at each length of the fireplace is 4”.  Throat is the opening at the top of the firebox that opens into the chimney. The throat should be at least 8” above the fireplace opening and must be a min. of 4” in depth.  Damper controls the flow of the air through the fireplace throat.It must be made of ferrous metal that extends the full width of the throat to prevent heat from escaping up the chimney when fireplace not in use. Its a movable coveringthat separates the firebox from the spaceabove. Itprevents cold air frommoving down into the house when no fireis burning.  The smoke chamber connects the fireplace and the flue. At the bottomof the smoke chamber is the smoke shelf, which deflects downdrafts and prevents any rain or soot from dropping directly into the fireplace. It acts as a funnel between the firebox and the chimney. Its shape should be symmetrical so that the chimney draft pulls evenly and creates an even fire in the firebox. The inside ht. of the chamber can’t be greater than the inside width of the fireplace opening.Its walls are made of solid masonry units, concrete, or hollow masonry units filled with grout. The walls must have a min. thk. of 6” including the liner and min 8” if no lining is provided.  Smoke Shelf is located at the bottomof the smoke chamber behind the damper. It prevents the downdrafts from the chimney entering the firebox.  The chimney surrounds the flue, keeping its heat from contacting any flammable building materials that may have been used on the home. It the upper extension of the fireplace and is built to carry off the smoke from the fire. The main components of the chimney are flue, lining, anchors,cap, and spark arrestor.  Flue is the opening inside the chimney that allows smoke and combustion gases to pass from the firebox away from the structure. Its size is in proportion to that of the firebox opening and the no. of open faces of the fireplace. It projects 2” to 3” above the cap.  The size is equal to either 1/8 or 1/10 of the fireplace opening.  Chimney Liner is built of fire clay or terracotta. It is built into the chimney to provide a smooth surface to the fuel wall and to reduce the width of the chimney wall. The liner reduces the buildup of soot (that causes chimney fire).  Chimney cap is the sloping surface at the top of the chimney, preventing rain to collect at the top of the chimney, moisture and animals from entering the flue. It may rotate to block wind gusts.  Chimney hood is a covering that can be placed over the fuel for protection from the elements. It can be made of masonry or metal.  Spark Arrestor is the screen placed at the top of the fuel inside the hood to prevent combustibles from leaving the flue. It prevents the exiting gases from carrying burning materials onto the roof.  Chimney damper, which is operated by a cable and closes the chimney at the top to eliminate downdrafts.  The surround protects the walls around the fireplace and is often topped by a decorative mantel.  Fireplace doors can be made of glass or metal. They shut off the air flow when the fire has died down or the fireplace is not in use. (The cross-sectional area of the passageway above the firebox, including throat, damper, smoke chamber, can’t be less than the cross-sectional area of the flue).
  • 4.
    Typical Construction Detailsfor a Fireplace Foundation Ash pit
  • 5.
    Ash Dump AshCaddy Hearth Firebox Smoke Chamber Cleanout Door Fireplace Opening Fireplace Throat or Damper Smoke Shelf
  • 7.
    WARDROBES  A wardrobeis a standing closet, a large, tall cabinet in which clothes may be hung or stored, has a door and rails or hooks for hanging clothes, shelves or drawers for putting them in. Different spaces required for storing differential clothing in a wardrobe as follow: Space for long coats and jackets Half height hanging Storage arrangement for men’s clothing Storage arrangements for women’s clothing Storage arrangement for linen
  • 8.
    Closet Dimensions Depth  Minimum24 inches for suits and dresses.  Minimum 28 inches for coats.  Minimum 16 inches for work and play wraps stored on hangers. Heightof Rod  63 inches for streetdresses.  45 inches for suits,blouses,and skirts.  45 inches for men's suits,pants,and shirts.  72 inches for floor length dresses.  30 inches for clothing 3- to 5-year-olds.  45 inches for clothing of 6- to 12-year-olds. Length of Rod  Minimum 48 inches per person in household.  Allow 3 to 4½ inches per lightweightand heavy coats.  Allow 2½ inches per man's garment. Shelves  Allow 3 inches between rods and firstshelf.  11-inch to 15-inch depth of firstshelf.  11-inch depth of second shelf.  8- to 9-inch allowance between shelves. Standard Heights & Dimensions ClosetDepth 24" Custom Closets Hanging Towers 12" Shelving/Drawer Towers 16" or 24" Luggage
  • 9.
  • 12.