Bachelor of Science (Honours) in Architecture / (Architecture)
METHODS OF DOCUMENTATION AND MEASURED DRAWINGS (ARC60305/ARC2323/ARC1215)
Former Istana Negara, Balairung Seri
Annex Building Report
LECTURER: AR CHIN & MS ALIA
i
Abstract
This document reports on the historically and
architecturally significant data and information collected
during the 5 days of onsite fieldwork for the module
METHODS OF DOCUMENTATION & MEASURED
DRAWINGS (ARC60305/ARC2323/ARC1215) in the Old
Palace, Istana Negara Lama. Originally a doubled storey
mansion of a Chinese millionaire, later the official
resident for His Majesty and Her Majesty, this building
functions as The Royal Museum now.
Influential past of the country can be seen through the
approach of design on the premise and the main
building, internally and externally. Once colonized by the
British, the main building, as a canvas painted with
abundance and welfare, shows the devotion one country
has to achieve the style of living of the British.
The building annex, in lieu, shows the incorporation of
both styles of the British as well as Malaysia’s own.
As the main building of Istana Negara was documented
in 2015, this report focuses on the annex building
constructed in 1980, under supervision of Captain David
Wee, mainly to accommodate the grand Balairung Seri
(the Throne Hall) for official and customary functions.
Documentations are done in the form of measured
drawings, written and photographic documentation for
the purpose of preserving accurate record of significant
historical properties. Analysis on the architecture and
status of the building as well as its potential to become a
tourist attraction are also well explained.
ii
Acknowledgement
The completion of this assignment could not have been
possible without the guidance of tutors and the co-
operation of all the teammates. Their effort and
contribution are sincerely and gratefully appreciated.
Therefore, team Istana Negara would like to express our
unending gratitude to everyone who had guided us,
particular to the following,
Hayati Binti Mohamad Zawawi, the Director of the Istana
Negara Museum, for providing us this opportunity to
measure and document the historically and
architecturally significance of the annex building in Istana
Neagra;
The staff, for being keen and accommodating in
providing related information;
The instructor, Dr. Nor Hayati Hussain, for giving us this
golden opportunity and experience to develop
understanding in methods of documentation and
measured drawing.
The tutors, Ar. Chin Tuck Heng and Nurul Alia Ahmad for
their constant support, guidance and persistence through
this journey.
Lastly the lovely team members, for the teamwork and
motivating team spirit through the entirety of this project.
iii
Declaration of Submission
We hereby certify all information and works done for the
submission of the course that we are taking, Methods of
Documentation and Measured Drawings
ARC60303/ARC2323/ARC1215, are original and does
not breach any law of copyrights. Written permission and
references have been granted by any copyright holders.
It is discerned that all works that are submitted for the
final assessment are covered by this declaration. It is
also asserted that all records and data were carried out
during the period of our site visit from January 25th – 29th,
2016 in Istana Negara Jalan Istana.
Conclusively, we have disclosed the necessary
documentation related to this project.
Daniel Rosien Bryan Lum
(Leader of Team Istana) (Leader of Team Istana)
iv
Table of Contents
i Abstract i
ii Acknowledgement ii
iii Declaration of Submission iii
iv Table of Contents iv-ix
vi List of Figures x-xix
1 Chapter 1: Introduction
1.1 Objectives and Aim 1
1.2 Methods of Measurement 2-3
1.3 Equipment Used 4
1.4 Literature Review 5
1.5 Significance of Study 6
1.6 Scope 7
1.7 Limitations 8
v
2 Chapter 2: Historical Background
2.1 Malaysia and Kuala Lumpur 9-12
2.2 Malaysia's Institute of Constitutional Monarchy and Parliamentary Democracy 13-14
2.3 Malaysia's Palaces and Balairung Seri 15-18
2.4 Balairung Seri Annex Building 19-21
3 Chapter 3: Architectural Development
3.1 Site Context 22-23
3.1.1 Surrounding Buildings 24-28
3.1.2 Existing Buildings in Site Compound 29-31
3.2 Landscape 32
3.2.1 Hardscape 33-35
3.2.2 Softscape 36
3.2.2.1 Water 37-40
3.2.2.2 Plants 41-46
3.2.2.3 Light 47
vi
3.3 Architectural Influences
3.3.1 Corbusian International Style 48-49
3.3.2 Machine Regionalism 50
3.3.3 Islamic Architecture 51-54
3.3.4 Victorian Style 55
4 Design Concept
4.1 Form 56-58
4.2 Space Planning 59
4.2.1 Entrance and Approach 60
4.2.2 Islamic Architecture in Space Planning 61
4.2.3 Connection between Main Building and Annex Building 62-67
4.3 Singgahsana 68-72
5 Materials
5.1 Structural
vii
5.1.1 Reinforced Concrete 73-76
5.1.2 Steel 77-78
5.1.3 Timber 79
5.2 Finishing 80-81
5.2.1 Exterior 83-83
5.2.2 Interior 84-88
6 Construction Details
6.1 Columns of Balairung Seri 89-92
.2 Roof 93-95
7 Ornamentations and Details
7.1 Columns 96-97
7.2 Pilasters 98
7.3 Doors 99-101
7.4 Windows 102-103
viii
7.5 Ceiling 104-105
7.6 Lighting 106-107
7.7 Wooden Carvings 108-110
8 Comparison Analysis of the Balairung Seri Building in former Istana Negara and current Istana Negara
8.1 Site context 111-112
8.2 Architectural Influences
8.2.1 Exterior 113-114
8.2.2 Interior 115-116
8.3 Details 117-121
9 Recent Condition of the building
9.1 Structural Observation and Recommendation
9.1.1 Roof 122-124
9.1.2 Wall 125-126
9.1.3 Columns 127
ix
9.2 Finishing Observation and Recommendation
9.2.1 Exterior 128-131
9.2.2 Interior 132-136
9.3 Historic Preservations and Conservations 137-139
9.4 Improvement Suggestions on Design 140-143
10 Conclusion
10.1 Architectural Role of Balairung Seri in search of National Identity 144-147
10.2 Aspiration for the building in future 148-152
Reference List 153-159
Glossary 160-163
Appendixes
A. Documents from National Archive 164-165
B. Documents from Badan Warisan 166-167
C. Photo Book 168-216
D 3D Model 217-221
E. Scaled Drawing 222-248
x
List of Figures
Figure 1.1Team Istana measuring the interior of balairung
(Lee, 2016)
Figure 1.2.Equipment used. (Foo, 2016)
Figure 2.1 Timeline of Malaysia History. (Lim, 2016)
Figure 2.2 Jalur Gemilang as our nation's emblem. (Lim,
2014)
Figure 2.3. Panaromic View of Kuala Lumpur in 1880
(Lim, 2009)
Figure 2.4. Bird Eye View of Developed Klang Valley.
(Rsmuthi, 2013)
Figure 2.5.The list of Seri Paduka Baginda Yang Di-PErtuan
Agong Malaysia. (Unknown, 2014)
Figure 2.6.Istana Sri Menanti. (Kariya, 2015)
Figure 2.7. Istana Jugra. (Wangsa Mahkota Selangor, 2010)
Figure.2.8.Istana Iskandariah. (Hashim, 1986)
Figure 2.9.Istana Alam. (Shafa, 2012)
Figure2.10.Balsirung Seri of IStana Syarqiyyah. (Bensley,
2015)
Figure 2.11Picture shows the temporary balairong built
at Istana Negara, Jalan Istana. (NSTP, 1957)
Figure2.12. The original colour of Cengal wood is exposed.
(BERNAMA, 1980)
Figure 2.13 Workers doing final touch for the preparation of
the Instalation Ceremony of His Majesty Yang di-Pertuan
Agong VII. (Bernama, 1980)
Figure2.14 The throne of His and Hers Majesty. (Department
of Information, 1980)
Figure 2.15 The throne located in the small throne hall.
(NSTP, 1966)
Figure 3.1 The former Istana Negara perched on a hilly
terrain. (Lim, 2016)
xi
Figure 3.2 Aerial view of the site surrounding. The former
Istana Negara was bypassed by two main highway, which are
the Jalan Istana and Jalan Syed Putra, with Klang River
flowing by at the North West. The site is peppered with
cultural buildings and government department headquarters.
(Google Maps, 2016)
Figure 3.3 Pejabat Penyimpanan Mohor Besar Raja-Raja).
(Google Maps, 2016)
Figure 3.4 Rumah Melaka at Jalan Bellamy. (Google Maps,
2016)
Figure 3.5 United Nations High Commissions for
Refugees.(Google Maps, 2016)
Figure 3.6 Jalur Gemilang at the former Istana Negara.
(Lim, 2016)
Figure 3.7 The management office. (Lim, 2016)
Figure 3.8 The shaded car porch.(Lim, 2016)
Figure 3. 9 The gymnasium. (Lim, 2016)
Figure 3.10 The tennis court. (Lim, 2016)
Figure 3.11 Police Station of the Former Istana Negara.
(Lim, 2016)
Figure 3.12 The main building. (Lim, 2016)
Figure 3.13 A combination of hardscape and softscape in
harmony. (Lim, 2016)
Figure 3.14 The homogenous tiles at the porch. (Lim, 2016)
Figure 3.15 The collonaded porch.(Lim, 2016)
Figure 3.16 Planter box with waterproof
membrane.(Balasingam, 2016)
Figure 3.17Drainage at the front portal. (Lim, 2016)
Figure 3.18 Lamp post in cast iron. (Lim, 2016)
Figure 3.19 Flag pole in front of the portal. (Lim, 2016)
Figure 3.20The royal garden of Muzium Diraja. (Chin, 2016)
Figure 3.21 Water is celebrated in most Islamic Architecture,
including the Old Istana
Negara. (Lim, 2016)
xii
Figure 3.22 Fountain. (Lim, 2016)
Figure 3.23 The pool with pergolas. (Chin, 2016)
Figure 3.24 Rivulet runs gracefully in the runnel. (Chin, 2016)
Figure 3.25 Lake surrounded by greeneries. (Chin, 2016)
Figure 3.26 The array of plants in the Old Istana Negara.
(Lim, 2016)
Figure 3.27 Iris in blossom. (Lim, 2016)
Figure 3.28 Hibiscus in the vicinity. (Lim, 2016)
Figure 3.29 Montgomery palms flanks the descending path
towards the field. (Lim, 2016)
Figure 3.30 Box clipped into hedges lines the border. (Lim,
2016)
Figure 3.31Yew. (Lim, 2016)
Figure 3.32 Hujan-hujan tree. (Lim, 2016)
Figure 3.33 Trimmed hedges. (Lim, 2016)
Figure 3.34 The garden adorned by fountain. (Lim, 2016)
Figure 3.35 The reflection of light casts a picture on the
granite floor.(Lim, 2016).
FIgure 3. 36 The exterior of Balairung Building. ( Tey, 2016)
Figure 3.37 The skybridge transverse across the building.
(Tey, 2016)
Figure 3.38 The rear elevation of the building. (Lim, 2016)
Figure 3.39 The pelmet on the Singgahsana depicting the
Quranic Verses.(LIm, 2016)
Figure 3.40 The bedroom is adorned with cottage flora. (Lim,
2016)
Figure 3.41The reception area of the apartment. (Lim, 2016)
Figure 3.42 The Singgahsana. (Lim, 2016)
Figure 3.43 His Majesty's bathroom. (Lim, 2016)
Figure 3.44 Hers Majesty bathroom. (Lim, 2016)
xiii
Figure 3.45 Rococo inspired mirror frame. (Lim, 2016)
Figure 3.46 Victorian style bedroom. (Lim, 2016)
Figure 4.1Exterior view of the annex building (Chin, 2016)
Figure 4.2Top view of the annex building (Lee, 2016)
Figure 4.3Perspective view of North Elevation (Foo, 2016)
Figure 4.4Ground Floor Plan of Balairung Seri(Tan, 2016)
Figure 4.5Photo showing press room cutting through double
volume throne hall (Lee, 2016)
Figure 4.6Palm tree lined driveway (Lim, 2016)
Figure 4.7Connectivity between the main building and the
annex building. ( Lim, 2016)
Figure 4.8The colonnade corridor. ( Foo, 2016)
Figure 4.9The Entrance of grand Balairung Seri. ( Tan, 2016)
Figure 4.10 Repetition of ogival window and floral motifs. (
Foo, 2016)
Figure 4.11The ‘coffered’ ceiling. ( Lim, 2016)
Figure 4.12 Interior view of the sky bridge (Lim, 2016)
Figure 4.13Exterior view from the skybridge (Joshua, 2016)
Figure 4.14 Simplified Ground Floor Plan. (Foo, 2016)
Figure 4.15Chandelier and lighting effect in the atrium of
Balairong Seri (Foo, 2016)
Figure 4.16 Panaromic view of double volume Balairung Seri.
(Joshua, 2016)
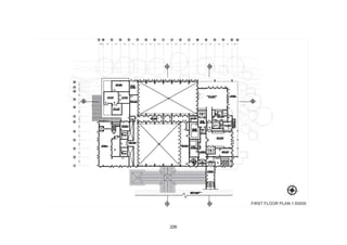
Figure 4.17 Simplified first floor plan ( Foo, 2016)
Figure 4.19 Gender segregated washroom (Yeoh, 2016)
Figure 4.20 Victorian Style Interior (Yeoh, 2016)
Figure 4.21 Simplified Lower Ground Floor Plan. (Foo, 2016)
Figure 4.22Side view of the grand Singgahsana. (Foo, 2016)
Figure 4.23 The throne. (Foo, 2016)
xiv
Figure 4.24 The Seat, known as takhta. (Leong, 2016)
Figure 4. 25 The pelmet with gilded inscription. (Leong, 2016)
Figure 4.26 and 4.27 The background carvings. (Leong,
2016)
Figure 4.27Closer shot on the carvings. (Leong, 2016)
Figure 5.1Exterior façade view of the Balairung Seri (Lee,
2016)
Figure 5.2Exterior wall (Lee, 2016)
Figure 5.3Roof slab (Lee, 2016)
Figure 5.4Interior ceiling and beams (Lee, 2016)
Figure 5.5Columns at the porch (Lee, 2016)
Figure 5.6Concrete Foundation (Lee, 2016)
Figure 5.8Walls spray painted to give a rough finishing
emphasizes the horizontal contrast between the smooth
surface(Tey, 2016)
Figure 5.9Diagram on concrete reinforced with steel rebar
(Lee, 2016)
Figure 5.10Arches made with the usage of reinforced
concrete(Lim, 2016)
Figure 5.11Steels are welded together (Lee, 2016)
Figure 5.12Steel trusses and timber are seen supporting the
structure (Lee, 2016)
Figure 5.13Rotten interior timber column and a badly
damaged wall at the edge of the meeting room (Lee, 2016)
Figure 5.14. Finishing diagram at Ground level. Most of the
finishing are focused on public area. (Lim, 2016)
Figure 5.15. Finishing diagram at First level. Most of the
finishing are focused on the suites (Lim, 2016)
Figure 5.16Rendered plaster on top of the concrete (Tey,
2016)
Figure 5.17 The steps (Lim, 2016)
xv
Figure 5.18 Floor of the colonnade (Lim, 2016)
Figure 5.19 Roof of the colonnade (Lim, 2016)
Figure 5.20 Old balairung in dark wood panelling (Lim, 2016)
Figure 5.21 Roof of the colonnade (Lee, 2016)
Figure 5.22 Private room (Tey, 2016)
Figure 5.23 Detailing on ceiling (Kong, 2016)
Figure 5.24The plasterboards inside of the throne
(Lim, 2016)
Figure 5.25 Plush carpet (Lim, 2016)
Figure 5.26 Parquet flooring in the sky brige (Lim, 2016)
Figure 5.27 King’s bathroom (Lim, 2016)
Figure 5.28 Mirror finished cabinet doors (Lim, 2016)
Figure 6.1 members in a column (Tey, 2016)
Figure 6.2 Difference between structural and decorative
column (Tey, 2016)
Figure 6.3 The Doric Columns supporting the porch. (Eng,
2016)
Figure 6.4 Engaged column exposed in façade. (Eng, 2016)
Figure 6.5 Column part terminologies. (Tey, 2016)
Figure 6.6 Parts of Tuscan column (Tey, 2016)
Figure 6.7Drawing showing relationship of structural and
decorative column in the throne (Neoh, 2016)
Figure 6.8 Bird eye view of annex building roof. (Lee, 2016)
Figure 6.9 Expanded metal walkway between two building.
(Lee, 2016)
Figure 6.10 Illustration showing concrete gutter section and
fixing on metal sheet (Foo, 2016)
Figure 6.11 Concrete gutter. (Foo, 2016)
Figure 6.12 Section of concrete tile roof.(Neoh, 2016)
Figure 6.13 Concrete tile roof & concrete gutter.(Lee, 2016)
xvi
Figure 7.1Single and double columns (Lee, 2016)
Figure 7.2 Placement of columns (Tey, 2016)
Figure 7.3Columns in Balairung(Lee, 2016)
Figure 7.4Throne area inside the Balairung (Lee, 2016)
Figure 7.5Pilaster in meeting room (Lim, 2016)
Figure 7.6Pilaster in Balairung Seri (Lim, 2016)
Figure 7.7 Entrance of to the King and Queen’s suite from the
skybridge (Lee, 2016)
Figure 7.8Entrance to the main Istana Negara building (Yeoh,
2016)
Figure 7.9 Entrance to the Holding room of the Balairung Seri
(Lee, 2016)
Figure 7.10Wooden carvings and floral motif which are
painted gold as ornamentation (Lee, 2016)
Figure 7.11Wooden double doors with floral carving, leading
to the Meeting Room (Tey, 2016)
Figure 7.12Simple wooden double doors, leading to the
Queen’s bedroom (Lee, 2016)
Figure 7.13Pointed arch window inside Balairong Seri (Lee,
2016)
Figure 7.14Floral ornamentation in Balairung Seri (Lee, 2016)
Figure 7.15 Coffered ceiling at Balairung Seri. (Lim, 2016)
Figure 7.16Covered skirting arranged in and orderly manner
(Lee, 2016)
Figure 7.17 Plasterboard ceiling with coving surrounding
(Lee, 2016)
Figure 7.18Chandelier of the Balairung Seri. (Lee, 2016)
Figure 7.19 Chandelier in the sky bridge (Lim, 2016
Figure 7.20 Chandelier at the bedroom with motifs of
blooming roses (Lim, 2016)
Figure 7.21 A panoramic view of the throne along with the
heavily adorned wall (Lee, 2016)
xvii
Figure 7.22A closed up image of the wooden carved panels
below the coffered windows (Lim, 2016)
Figure 7.23 Wooden patterns carving on the top of the
coffered windows (Lee, 2016)
Figure 8.1. Aerial View of Old Istana. (Google Maps, 2016)
Figure 8.2. Aerial View of New Istana.(Google Maps, 2016)
Figure 8.3. Aerial View of Old Istana. (Google Maps, 2016)
Figure 8.4. Aerial View of New Istana.(Google Maps, 2016)
Figure 8.5. Exterior of the main building with the East wing on
the right.(Lim, 2016)
Figure 8.6..Exterior of the New Istana Negara.( My Sumber,
n.d.)
Figure 8.7. The grand gateway view. (Bretuk, n,d,)
Figure 8.8. Interior of the Balairong Seri at the Old Istana
Negara.(LIm, 2016)
Figure 8.9 Interior of the Balairung Seri at the New Istana
Negara (Bernama, 2012)
Figure 8.10 The coffered ceiling. (Lim, 2016)
Figure 8.11 The New Balairung Seri's ceiling. (Lim, 2016)
Figure 8.12 The carpet in the former Balairung Seri.
(StatcFlick, n.d.)
Figure 8.13 The minimalistic carpet in the New Balairung Seri.
(Fadzil, 2011)
gure 8.14 The chandelier in Former Balairung Seri. (Lim,
2016)
Figure 8.15 The obor-obor inspired chandelier. (JKR, 2011)
Figure 8.16 The bunga raya inspired panels. (Lim, 2016)
Figure 8.17 The tebuk tembus bersilat timber panel. (JKR,
2011)
Figure 8.18 The old Istana Negara Balairung Seri. (Bernama,
2012)
Figure 8.19 The former Singgahsana (Lim, 2016)
xviii
Figure 9.1 Growth of wild on the roof tiles. (Yeoh, 2016)
Figure 9.2 Rusted Roof could easily cause leakage. (Yeoh,
2016)
Figure 9.3 Damp patches (Yeoh, 2016)
Figure 9.4 Algae on the wall of sky bridge. (Yeoh,, 2016)
Figure 9.5 Algae on the ceiling of the porch (Yeoh, 2016)
Figure 9.6 The exterior wall with algae growth. ( Yeoh, 2016)
Figure 9.7 Column at the south elevation. (Yeoh, 2016)
Figure 9.8 Water leakage in ceiling. (Yeoh, 2016)
Figure 9.9 Damagedwindow frame. (Yeoh, 2016)
Figure 9.10 Exterior ceramic tiles. (Yeoh, 2016)
Figure 9.11 Peeling off paint. (Yeoh, 2016)
Figure 9.12 The interior of Balairung Seri with plush carpet.
(Yeoh, 2016)
Figure 9.13 The panels with embroidered fabric. (Yeoh, 2016)
Figure 9.14 Interior wall of Personal Dining Room in Queen
Suite (Yeoh, 2016)
Figure 9.15 Paint cracks at the suites. (Yeoh, 2016)
Figure 9.16 Queen’s bathroom (Yeoh, 2016)
Figure 9.17 King’s bathroom (Yeoh, 2016)
Figure 9.18 Wood decay (Yeoh, 2016)
Figure9.19Short section cut of Balairung Seri. (Neoh, 2016)
Figure 9.20Floor Plan of dressing room and water closet at
first floor. (Tan, 2016)
Figure9.21Gap between the staircase and the wall (Foo,
2016)
Figure9.22Grille staircase in the exterior. (Foo, 2016)
Figure.9.23The asymmetrical plan of the throne hall. (Lim,
2016)
Figure 10.1. Chandigarh Capitol by Le Corbusier. (Canadian
Centre of Architecture, 1956)
xix
Figure 10.2A map of Kuala Lumpur’s major tourist attractions
(Mari mari, 2014)
Figure 10.3Picnic in Keningston Garden (Caroline, 2013)
Figure 10.4. Table of comparison among Royal Gardens.(
Rosien, 2016)
Figure 10.5Banquet set up in the garden (Debbie, 2015)
1
Objectives and Aims
The objective of this study is to document the
significance of the building which is the Royal Museum
Balairung Seri Annex Building to analyze the relationship
between the architecture of the building as well as its
settlement.
A week of site inspection was given to our group in order
to carry out compilation of data that was to be
incorporated into drawings. These drawings which
consist of floor plans, sections, elevations and site plan
were then used as a reference for the scaled model of
the Royal Museum.
In addition to that, a report is also required to document
our findings. Thus, all important findings and data of the
building should be collocated. Pictures of the overall
building which includes the exterior and interior views are
also included in the report.
2
Methods of Measurement
In order to complete the research and documentation of
the Royal Museum, various ways have been
implemented. Our team of 27 students were grouped into
four sub groups which were tasked to do several parts of
the building in order to progress quick and smoothly.
Each sub-group is handled by a team leader who is in
charge of leading and keeping their team up to date with
the progress.
There are several measuring methods used, one was a
hands on experience where we would measure on site
using several equipment. On the contrary, the second
method was to refer from previous reports on the
building which in our case, was to refer our seniors work.
Pictures were also taken for the purpose of references.
Measuring tapes were mainly used in measuring the
building as it is a common measuring tool. Its design
allows for a measure of great length and can be easily
carried in a pocket or toolkit. It is mostly used for
measuring the building floor plans, columns and details
while the digital laser device was used in measuring the
height of the building and ceilings as it is more
convenient to use in measuring longer distance of
measurement.
In order to obtain the plan of the roof, a drone was used.
The drone helps to capture a clear view of the roof and
also the surrounding as well as the elevations of the
building. As some of the walls were slanted and 90
degree angled, a spirit level was used.
3
Considering the ornaments were small and very detailed,
a profile gauge was used to measure the detailing part.
But due to the low accuracy and precise measurement,
we used a different method as it is presumed to be more
accurate. The method was to take a picture of the
specific detailed ornaments and trace it in Autocad. After
tracing the ornaments, the tracing part was later scaled
down to tally with the main measurements.
Figure 1.1Team Istana measuring the interior of balairung
(Lee, 2016)
4
Equipment Used
Figure 1.2. Equipment used. (Foo, 2016)
5
Literature Review
Currently standing as the Royal Museum, Istana Lama
also known as the metaphor of time in Malaysia.
Originally a doubled storey mansion of a Chinese
millionaire Chan Wing, this building used as officers‟
mess during Japanese Occupation, and owned by British
Royale Air Force during the war. Later, it becomes the
temporary Palace for the Sultan of Selangor and lastly,
the official resident for His Majesty Seri Paduka Baginda
Yang Di-Pertuan Agong and Her Majesty Seri
PadukaBaginda Raja Permaisur iAgong.
Related data and information are collected mainly from
online material, National Archive, National Library,
pamphlet, Badan Warisan and some other related
architecture books. Basic drawings for main building,
architecture style, and cultural aspects are discussed.
However, information mainly focuses on the main
building and there is not much information that explains
about the annex building, renovated for the grand
Balairung Seri (the Throne Hall) for official and cultural
ceremony. Besides, we were unable to contact the
Public Works Department (Jabatan Kerja Raya) who had
carried out the construction, thus further research can be
done from there in the future.
6
Significance of Study
Other than understanding the architecturally important
quality from the Istana Lama (The Royal Museum), this
project also aims to preserve the historically significant
information of this building in relation to Malaysia‟s
history. As a Malaysian, it is important to understand the
growth of our country and witness the development as
well as achievement of it.
By documenting this building in depth, it allows more
people to be exposed to the royal lifestyle in Malaysia,
from the daily lifestyle to the official and customary
functions. This project is documented in the form of
sketching, drawings, video, and reports, aiming to
uncover the stories behind the old palace, especially the
Islamic Culture in the Palace.
7
Scope
Focused on the building annex of the Royal Palace on
Jalan Istana, a study was carried out. Served once as a
palace for the royals, now a museum for the public to
view, the royal palace is a place where high values of
cultural and history can be seen and learnt.
The documents of the current state of the Royal Palace
Balairung Seri are not the only focuses in the study but
also the history of the function of the structure and the
development of the building within years.
Furthermore, a comparison was made with the latest
Royal Palace which is located at Jalan Duta, where the
Yang di-Pertua Agong now lives since the year 2011.
This is to show the contrast in development and changes
in architectural style.
The purpose of these observations was to document the
significance and the condition of the building and to allow
improvements and maintenance of the building.
8
Limitations
The royal palace, now a royal museum has a wide range
of limitation to areas as it is a place for public visiting.
Although restricted to enter the certain areas, one can
only view the rooms behind rails. Therefore, it was an
upmost honor to be allowed access to areas that was
constricted to the visitors. Although we were reminded to
enter the areas carefully in order to avoid visitors
supervening our actions.
Documentation and media sources on the building annex
were quite limited as most of the information was about
the main building. Documenting the structure itself was a
difficult challenge as the verbal and non-verbal
information that we have gathered were mainly focusing
on the usage of the building (for example, the
coronations of the Sultans) rather than the architecture of
the structure.
Besides that, it was also very rare to find documents
regarding the Balairung Seri before it underwent
changes.
Lastly, the inspection for the documentation does not
include an assessment of geological, geotechnical, or
hydrological conditions, or environmental hazards. It also
does not include areas, which were inaccessible, not
readily accessible or obstructed at the time of inspection.
9
2.1 Malaysia and Kuala
Lumpur
Figure 2.1 Timeline of Malaysia History. (Lim, 2016)
10
Today, celebrating our nation's 59 years of
independence, we as Malaysians would like to pose a
question to ourselves: Have we found the national
identity that our forefathers had been searching for, and
if so, do we behold and cherish that very special identity
of being Malaysian? From an architectural perspective,
we would like to start this journey from the old Istana
Negara, the old National Palace, the symbol of
sovereignty and dignity of this land to find the answer.
Figure 2.2 Jalur Gemilang as our nation's emblem.
(Lim, 2014)
11
Kuala Lumpur & Riches
Formerly as a tin mining valley, it soon became the lure
of the mid-19th
century, hence captured the attention of a
group of miners to migrate to the valley in between 2
rivers which is Klang River and Gombak River. The city
covers an area of 243 km2
(94 sq mile).
In the 19th
century, Klang Valley was threatened and
devastated with diseases, epidemics, fires and floods.
Later on, this situation came to an end when Malaysia
was colonized by the British. Yap Ah Loy stayed through
this situation and helped out in the renovation as well as
improvement of Klang Valley. In 12-month time, the
population of Klang Valley has vigorously increased by
30%. In March 1880, Klang Valley was then renamed as
Kuala Lumpur. The meaning of Kuala Lumpur is “muddy
confluence”. Since then, the tie between tin and the land
can never be untangled, as undeniably, it is this humble
mineral that became
the soul which brought vibrancy and life to this sleeping
land of riches.
Figure 2.3. Panoramic View of Kuala Lumpur in 1880 (Lim, 2009)
12
In this era, a foresighted Chinese teenager, Chan Wing
fled Canton and arrived in Kuala Lumpur, started his
quest for a better living. He ventured in bank and tin
mining industry and successfully earned buckets of gold
from his mining company, Hong Fatt Tin Mine. As any
millionaire, he sought for recognition of wealth, most
significantly and easily through the language of
architecture, by building a mansion fit for a king. When
Kuala Lumpur proved no longer a secure place for him
during World War II, he fled, left his mansion occupied by
the Japanese and the British.
Finally, the mansion was revived after Malaysia obtained
independence in 1957, being converted to the Palace for
the Yang di-Pertuan Agong of Malaya, truly a mansion,
fit for a king. Nowadays, the land is situated at the heart
of Kuala Lumpur, the capital of Federation of Malaya, a
fast-paced developing city which has 1.6 million people
lived in. Silently, this plot of land observed and recorded
the history, waiting to be discovered.
Figure 2.4. Bird Eye View of Developed Klang Valley. (Rsmuthi,
2013)
13
2.2 Malaysia's Institute of
Constitutional Monarchy and
Parliamentary Democracy
Our nation's Institute of Constitutional Monarchy and
Parliamentary Democracy is one of its kind among other
nations. To preserve the Sultanate Monarchy which had
lasted since the Malacca Sultanate in the 1400s under
the reign of Parameswara, also known as Sultan
Iskandar Shah and strike a balance among the people's
rights in political affairs, this distinct system is being
employed.
Constitutional Monarchy (Raja Berpelembagaaan)
A constitutional monarchy is a system in which the
monarch‟s power is limited by the constitution of the
state. In other words, the monarch wields only the power
as granted by the law, and does not hold absolute
power.
On the federal level, the head of state, the Yang di-
Pertuan Agong, sits at the apex of the Malaysian society.
He is a symbolic representation of a nation‟s authority.
Based on the Westminster parliamentary system, the
Malaysian political system does grant the Yang di-
Pertuan Agong some limited powers, including the power
to grant or refuse a dissolution of the parliament, and
appointing a prime minister.
Besides, His symbolic roles include being the
Commander-in-Chief of the Malaysian Armed Forces
and carrying out diplomatic exchanges with other states.
Just like it was during the British colonial period, the
Yang di-Pertuan Agong is also the head of Islam in his
own state as well as the four monarch-less states of
Penang, Malacca, Sabah and Sarawak as well as the
Federal Territories.
14
The Yang di-Pertuan Agong
The Yang di-Pertuan Agong is elected to a five year term
from among the 9 Malay state rulers. After the Yang di-
Pertuan Agong‟s term of office, the conference of rulers
will then elect another to replace him. The position of
Yang di-Pertuan Agong is rotated among the 9 rulers,
with a cycle that begins with the election of the Yamtuan
Besar of Negeri Sembilan (Negeri Sembilan does not
have a Sultan) to the office of the Yang di-Pertuan
Agong, followed by:
1. The Sultan of Selangor ,
2. The Raja of Perlis,
3. The Sultan of Terengganu,
4. The Sultan of Kedah,
5. The Sultan of Kelantan,
6. The Sultan of Pahang,
7. The Sultan of Johor before ending at
8. The Sultan of Perak,
Figure 2.5.The list of Seri Paduka Baginda Yang Di-PErtuan Agong
Malaysia. (Unknown, 2014)
15
2.3 Malaysia's Palaces &
Balairung Seri
Since the reign of Malacca Sultanate in Malaya, palaces
had been built for the royal families of various
architectural influences based on the preference of the
Sultan of every state. Palace is the emblem of
sovereignty and authority, where the nation's pride lies.
Balairung Seri generally serves as the heart of the
palace, where the Singgahsana, the throne is located. It
serves as a royal sanctum for official and customary
occasions, such as the ceremonial affairs for the taking
of the Royal Pledge during the Installation of the Yang
Di-Pertuan Agong, the taking of oath by Ministers, the
presentation of Federal Orders, Decorations and Medals
during the Investiture ceremony, dinners for Conference
of Rulers, taking of oath of Secrecy by the Prime Minister
and his Deputy, the royal birthday celebrations and State
banquets. (Biannual, 1999)
From the following comparison, we can see the gradual
transformation of the architectural language depicted by
the Istana and Balairung Seri, largely influenced by the
epoch, from the traditional Minangkabau vernacular, to
an influence of Moghul and Romanesque, to the
integration of colonial and Saracenic, largely influenced
by the Western palaces with manicured gardens, lastly a
revivalism back to the roots of Islamic architecture in a
modernist approach.
16
Figure 2.6. Istana Sri Menanti. (Kariya, 2015)
Istana Sri Menanti
Built in 1902, palace is an emblem of Minangkabau
architecture, that emphasize family, nature and arts,
Constructed entirely using vernacular tenon and mortise
joints of hardwood with 99 structural columns of
hardwood symbolized the 99 hulubalangs that served the
state (Arkib Negara, n.d.). Unlike other Singgahsana that
show grandness and overpowering, this design revealed
an intimately poise and pensive nature.
Istana Jugra
Built in 1905, western influences started to assimilate
with the local architecture, colonial inspirations are
clearly exhibited. The expression of Roman and Moghul
elements can be seen. In space planning, the Balairung
Seri is located at the south east end of the building,
receiving its honoured guests in a symmetrical square
plan, depicting order and balance for a state's ruler,
drawing inspiration from the west.
Figure 2.7. Istana Jugra. (Wangsa Mahkota Selangor, 2010)
17
Figure 2.8.Istana Iskandariah. (Hashim, 1986)
Istana Iskandariah
Completed in 1933, the palace is the emblem of Indo-
Saracenic architecture, which is the amalgam of Islamic
architecture and Indian materials developed by British
architects in India during the colonial era. (Jeyaraj, n.d.)
Facing the East with pointed arched and onion-shaped
domes, the symmetrical complex accommodates a Balai
Nobat, Balairung Seri and Singgahsana in a linear
percussion.
Figure 2.9.Istana Alam. (Shafa, 2012)
Istana Alam Shah
Rebuilt in 1950s, the central golden onion dome
dominates the palace with two high pitched, blue tiled
wings. Similar as the old Istana Negara, a Balairong Seri
lined with red carpet can accommodate 1000 people was
built for coronation and other important ceremonies. The
Istana has a renovated Balai Santapan Diraja with a
capacity of 1000 patrons. As the Old Istana Negara, the
vicinity is a man-made garden of French Renaissance.
18
Figure2.10.Balsirung Seri of IStana Syarqiyyah. (Bensley, 2015)
Istana Syarqiyyah
Adorned as "Jewel of the East", the design of the palace
is of a blend of Islamic and vernacular revivalism,
inspired by the Alhambra in Spain, embodied in this
palace of castellated traditional timber structure,
evocative of Babylon's Hanging Garden. The Balairung
in this palace is greatly influenced by Moorish
architecture with arched blue marble colonnades
whereby the gilded Singgahsana stands out prominently,
with a skylight dome directly illuminating the
Singgahsana from above. Unlike the Old Istana's
Balairung, with a grand percussion, straight towards the
Singgahsana, the Balairung in Istana Syarqiyyah's
percussion can be truncated into three quadrants using
movable partition panels, for holding different occasions,
a distinct hierarchy symbolization.
19
2.4 Balairung Seri Annex
Building
A temporary Balairong was built in the year of 1957 after
the mansion was made into the palace to hold the
coronation of SPB Yang di-Pertuan Agong Tunku Abdul
Rahman. The construction of the temporary throne hall
cost RM170000 and it was later demolished at the end of
the same year.
Later in the year of 1980, a massive renovation was
carried out at the palace to add in an annex building
which is the current existing throne hall and the
construction was led by senior architect, Kapten David
Wee from the Public Work Department with the purpose
of holding the coronations of Agong and official and
customary ceremonies. Local designers as well as
designers from France were hired to design the interior
of the building. The ground floor accommodates the
double volume Balairong Seri (Throne Hall), waiting halls
and meeting rooms, whereas the first floor contains Their
Majesty's suite.
One of the most astonishing feats undertaken by the
renovation team was the completion of works and
intricate carvings for the Throne Room. It took seven
months to complete the work, including the carvings
which would normally have taken three years, according
to Captain David Wee. All carvings was carried out by
expert craftsmen from Kota Bahru, Kelantan, by 60
Figure 2.11Picture shows the temporary balairong built at Istana
Negara, Jalan Istana. (NSTP, 1957)
20
workers led by Mr Abdul Latif. Inspired by the national
flower, the Hibiscus, all panels are hand crafted to meet
the highest standard of Malay traditional carvings. All the
gilded panels lined the grand percussion of the Throne
Hall, heightening the grandiose of the building. The
beauty of the Throne Room is enlightened with the 17
crystalline chandeliers imported from Austria.
(Masterpiece, 1999)
From the old photos exhibited at the throne hall, it can be
seen that the original color of the interior walls was
actually dark brown while the wall patterns can be seen
in grid design, further renovations which involved
repainting the walls and discarding the grid design was
estimated to be around the year of 2002-2007, the exact
dates and years of the renovation remain unknown at
this moment.
The reason of using white, yellow and gold in the latter
was to emphasize and strengthen the majesty of the
royal family. Coronation of 13 Agongs had been held in
this hall before it was made a museum by the local
government, the last coronation held here was in 2007.
Figure2.12. The original colour of Cengal wood is exposed.
(BERNAMA, 1980)
21
Clockwise:
Figure 2.13. Workers doing final touch for the preparation
of the Installation Ceremony of His Majesty Yang di-
Pertuan Agong VII. (Bernama, 1980)
Figure2.14. The throne of His and Hers Majesty.
(Department of Information, 1980)
Figure 2.15. The throne located in the small throne hall.
(NSTP, 1966)
22
3.1 Site Context
Located at Jalan Istana, the heart of Kuala Lumpur, with
a coverage of 11.34 hectars, the Old Istana Negara
perched on Bukit Petaling surrounded with towering
trees, overlooking the iconic buildings of Kuala Lumpur
(figure 3.1). The hustle and bustle of the city is soon
muted by the natural buffer of lush flora and foliage.
Figure 3.1. The former Istana Negara perched on a hilly terrain.
(Lim, 2016)
23
Figure 3.2. Aerial view of the site surrounding. The former Istana Negara was bypassed by two main highway, which are the Jalan Istana
and Jalan Syed Putra, with Klang River flowing by at the North West. The site is peppered with cultural buildings and government
department headquarters. (Google Maps, 2016)
24
3.1.1Surrounding Buildings
Keepers of the Ruler's Seal Office (Pejabat
Penyimpanan Mohor Besar Raja-Raja)
Established in 1948 according to the summon of
Perjanjian Persekutuan Tanah Melayu towards the
independence of Malaya, the office takes the role of
managing all official and customary affairs of the Sultans
and Yang di-Pertua Agong, such as convening the
Conference of the Rulers, management and declaration
of annual Ramadhan, Hari Raya Puasa and Hari Raya
Qurban, arrangement for the Rulers' transportations to
meetings and conferences and holding of the Ruler's
Seal (Majlis Raja-Raja, 2010), which is the symbol of
sovereignty of the Conference of the Rulers.
Figure 3.3. Pejabat Penyimpanan Mohor Besar Raja-Raja). (Google
Maps, 2016)
25
Public Works Department Bukit Petaling (Jabatan
Kerja Raya Bukit Petaling)
Bearing the responsibility of planning, design and
construction of public and government endorsed works,
including the construction and renovations of the former
Istana Negara Balairung building, the branch of public
works department is situated at Jalan Bukit Petaling.
Rumah Melaka
A British colonial house once used as a guest house for
honored guests from the Royals.
Figure 3.4. Rumah Melaka at Jalan Bellamy. (Google Maps, 2016)
26
United Nations High Commissions for Refugees
As part of the United Nations, Malaysia joined the forces
of the international partnership in protecting, aiding and
facilitating refugees that seek asylum in our country in
terms of healthcare, educational and financial welfare.
The operations started in Malaysia in 1975, when
Vietnamese refugees fled their home to Malaysia, and
since, with the cooperation with other nations, had
helped 240,000 of them to relocate to other developed
countries. (UNHCR, 2011) Today, the organization still
functions as a beacon, lending a hand to the refugees
and hope to make a difference in their life.
Red Crescent Malaysia National Headquarters (Bulan
Sabit Merah Malaysia)
Since 1950s, the organization had carried out voluntary,
humanitarian philanthropic works for the people of
Malaysia. The national headquarters is located at the
North East of former Istana Negara.
Figure 3.5. United Nations High Commissions for Refugees.
(Google Maps, 2016)
27
Kuen Cheng High School
Established since 1908, the Chinese Independent High
School stood as a testimony of the Chinese to uphold
their integrity in education and the inheritance of Chinese
heritage through years of grappling with wars, legislative
obstacles and financial problems. Originally as a girls'
school, it was located at No.31 Kampung Attap and was
forced to close down during World War II. In 1956, it was
relocated to the current site and insisted in Kuen
Cheng's "Independent Chinese Education" that had
stood the test of time for more than half a century,
nurturing elites in various fields. In 2008, the school
reorganized to become a co-ex school. (Kuen Cheng,
n.d.)
Alice Smith International School
In year 1946 at the end of World War II, British Mrs. Alice
Smith started her very first school at her home in Kuala
Lumpur, with the vision to "ensure that expatriate
children returning to education in their home country or
moving to a school in another country could do so as
seamlessly as possible." In 1950, Mrs. Smith left Malaya
for Australia and in 1952, the school relocated to Jalan
Bellamy. With the same passion as Mrs. Smith
possessed, the school had been operating for over 60
years, inspiring and nurturing the young in Kuala
Lumpur. (Alice Smith School, n.d.)
.
28
Surrounding Buildings in relation to the Former
Istana Negara
It short, the surrounding buildings can be classified into
three attributes, cultural, educational and humanitarian.
The Keeper's of the Seal Office, Rumah Melaka and the
Public Works Department branch carries significant roles
in our country's monarchy culture. The United Nations
High Commissions for Refugees and Red Crescent
Malaysia National Headquarter holds pivotal role in
humanitarian works. Whereas Kuen Cheng High School
and Alice Smith International School are the pioneers in
our country's educational system. When these attributes
are placed side by side, we can conclude that the vicinity
tells a discreet message in our nationhood, whereby the
heart of the nation, which is symbolized by the Istana
Negara, is centered around these very essentials in
establishing a holistic country, which are education for
the people, preservation of cultural heritage and the
contribution towards the society.
Figure 3.6. Towering buildings surrounding former
Istana Negara. (Lim, 2016)
29
3.1.2 Buildings in Site
Compound
Management Office
Housing the administrative office for the Museum curator
and staff. The building speaks of a similar architectural
style as the Balairung Seri, with arch louvered windows
and Brutalist massing in a reduced geometry, painted in
cream.
Car Porch
With 102 shaded bays for the staff, the car porch is
surrounded by vegetations.
Figure 3.7. The management office. (Lim, 2016)
Figure 3.8. The shaded car porch. (Lim, 2016)
30
Gymnasium
Located behind the tennis court, equipped for games,
exercises and sports activities. Built with a corrugated
zinc roof, the gymnasium offers a conducive environment
for exercise, shaded from the hot sun.
Tennis Court
A standard tennis court is located behind the car porch.
The court is guarded with wire fences and with lamp
posts illuminating the court at night.
Figure 3. 9. The gymnasium. (Lim, 2016)
Figure 3.10. The tennis court. (Lim, 2016)
31
Police Station
Located at the south of the Balairung Seri Annex
Building, it provides all time protection for the royalties
against threats, with in-house constables, officers and
policemen.
Main Building
Influenced by the Palladian and British Colonial style, the
symmetrical main building houses the apartments for the
royal family, banquet rooms, minister rooms, family
rooms, small throne room, dentist clinic, guest rooms etc.
Originally a mansion for Chinese millionaire, Mr Chan
Wing it was eventually converted into a military mass for
the Japanese Army during World War II, followed by an
air force control base for the British Military
Administration. Thereafter, the mansion was finally
transformed as the first National Palace for the Yang di-
Pertua Agong of Malaysia.
Figure 3.11. Police Station of the Former Istana Negara. (Lim,
2016)
Figure 3.12. The main building. (Lim, 2016)
32
3.2 Landscape
The landscape of the former National Palace consists of
Hardscape and Softscape. Hardscapes are the man-
made structure, whereas softscapes are natural
elements.
Figure 3.13 A combination of hardscape and softscape in
harmony. (Lim, 2016)
33
3.2.1 Hardscape
Walkway (paved road)
The walkway leading to the entrance of the Balairung
Seri and around the building consists of square porcelain
tiles in earth gray tone. The tiles of the walkway are
arranged in a geometric pattern at the gateway and the
main porch, whereas those in front of the Balairung Seri
are homogenous.
Colonnade Porch
A shaded roof structure supported by rows of mirrored
Doric columns, fluted and devoid of ornamentations.
Arches are deployed to distribute the load equally
through the structural columns from the capital to the
base.
Figure 3.14. The homogenous tiles at the porch. (Lim, 2016)
Figure 3.15. The colonnaded porch. (Lim, 2016)
34
Planter Box
The planter box is affixed outside the Balairung Seri to
portray local grown flowers and plants. The placement of
these planter boxes are convenient for cleaning
purposes and are able to receive efficient sunlight
although being affixed near to the walkway‟s roof shade.
A waterproof membrane is implemented behind the
planter box that connects to the Balairung Seri to avoid
any leakage inside the building.
Drainage
Drainage by definition is an artificial man-made passage
for excess water to flow. The drainage of the Balairung
Seri can be seen around the building itself making
drainage during rainy days easier as it prevents the
occurrence of flooding. The drainage found along the
Balairung Seri varies from closed drains to partially
covered drains.
Figure 3.16. Planter box with waterproof membrane. (Balasingam,
2016)
Figure 3.17 Drainage at the front portal. (Lim, 2016)
35
Lamp Post
Gilded cast iron lamp posts peppered around the vicinity
of the palace to illuminate the night gracefully.
Flag Pole
Located at the front of the central axis of the main
building, our nation's Jalur Gemilang billows in pride on
the 12m flagpole, a constant reminder of the sovereignty
of the country.
Figure 3.18 Lamp post in cast iron. (Lim, 2016)
Figure 3.19 Flag pole in front of the portal. (Lim, 2016)
36
3.2.2 Softscape
As a palace for our country, Islamic Architecture values
are integrated. The building was designed to be situated
amidst a garden, emblematic of the Paradise in Islamic
cultures. In Islam, the spiritual and physical experience
of garden with life is inseparable. The symbolism of an
Islamic garden represents a universal theme - that of the
understanding of nature and the universe (Roche, 2015),
which is clearly integrated in an ecological outlook of the
built environment, whereby nature and man correlates
harmoniously. Here, man coexists with the environment,
giving away and receiving in return. From this
partnership, man is bound to attain peace, while floral
and foliages thrives and flourishes, unbridled and
verdant.
Figure 3.20 The royal garden of Muzium Diraja. (Chin, 2016)
37
3.2.2.1 Water
In Islam, water is seen as life-giving, sustaining, and
purifying as the Qu'ran states, "From water every living
creature was created." (James, 2009). It represents the
gracious gift of Allah to mankind, which comes in the
number of 4, representing the 4 earthly rivers: the Nile,
Euphrates, Sayhan and Jayhan, the streams from the
Garden of Eden, which is paradise. According to Prophet
Muhammad's recordings of his miraculous journey to the
heaven, he mentioned four rivers flowing with milk,
honey, wine and water. (Hilmi, 2014). From these
accounts we can conclude that the number four has the
inherent symbolism reflecting the natural world and water
is also a symbol of life and prosperity, as without water,
man's existence would be a short-lived affair. Thus,
water is cherished, honored and channeled as a
language of architecture in the garden and there is a
total of four types of water features introduced here. In
architectural context, water gracefully depicts reflection,
refraction and transformation of light throughout the day
(Hilmi 2014), which enriches the building's visual
experience. This draws people closer to God through
quiet meditation and to echo the Qur'anic phrase of
"gardens underneath which rivers flow". (Hilmi, 2014).
Figure 3.21 Water is celebrated in most Islamic Architecture,
including the Old Istana Negara. (Lim, 2016)
38
Fountain
Two identical Arabesque fountains welcome the patrons
with cascades of pristine water, whereby the soothing
gushes of water calms the spirit and the sprinkles of
water freshens the air. It cleanses the souls of patrons
before entering the complex.
Pool
A swimming pool offers splashes of cool refreshing water
for the royal family during a hot summer. The pool is
lined with pergolas to achieve the Islamic teaching of
Haya, which means modesty, whereby it acts as a filter
to provide certain degree of privacy for the royals without
obstructing the views towards the surrounding.
Figure 3.22 Fountain. (Lim, 2016)
Figure 3.23 The pool with pergolas. (Chin, 2016)
39
Runnel
Run alongside the stairway towards the pool, water
trickles down the runnel, symbolizing the longevity of life.
The water runnel is aligned to the Qibla line, facing the
holy land of Mecca, as the Balairung Seri, the throne
hall.
Figure 3.24 Rivulet runs gracefully in the runnel.
(Chin, 2016)
40
Lake
Embraced by lush floral and foliage, an oasis among the
heart of the city of Kuala Lumpur, the lake is a sanctuary
for the Royal Family. The towering trees surrounding the
lake are the natural sunshades that cast delicate
shadows of the foliage in this hot tropical climate while
the royalties can enjoy the serenity of the place. During
early days, Koi and carps were rared in the lake. Koi is a
symbol of auspicious in Chinese belief, so it is evident
that due to the multiracial background of our country,
cultural assimilation seeps deep in the root of our people.
Figure 3.25 Lake surrounded by greeneries. (Chin, 2016)
41
3.2.2.2Plants
Muslims appreciate nature as a source of joy, inspiration
and enlightenment. Tree is a symbol of wisdom, roots in
meditation and bears fruit of spirit. "Tree of life" is seen
as the connecting link between the three world levels of
ancient Orient: The Paradise (sky), World of human
(earth) and the World Below (underworld), (Munday,
2004) with its branches and foliage soaring towards the
sky, trunk on the ground and roots deeply engraved in
the soil. Wide arrays of tropical flora lght up the garden
with vibrant colours and wafts of fragrance which give a
sense of serenity amidst the hot weather. Also a tradition
in Islamic garden, whereby most Islamic Arabic countries
situated in hot arid desert zone, blooms offer a refreshing
ambient of hope and life. In this context, the vegetation
serves as a screen that buffers the hustle and bustle of
the city against the serenity of the region, as a home for
the King, a Garden of Eden amidst the throbbing city of
Kuala Lumpur. Figure 3.26 The array of plants in the Old Istana
Negara. (Lim, 2016)
42
Iris
A perennial flora, elegant and vibrant in its tinge of
saffron. It is perhaps the most favored flower after roses
and tulips. Originated from the humble foothill of Turkey,
it reached the hands of the most powerful man of the
vicinity, the King and later the love for Iris spread across
the European continents and throughout the world. In the
Ottomans era, Iris is a crowned jewel, admired by the
royalties, as a symbol of supremacy and status. In
Turkish Islamic Culture, Irises are usually associated
with funeral tradition. Muslims plant white Irises at the
grave of the deceased as a symbol of remembrance and
love. Besides, It is also a royal emblem of power and
position of the Bourbon Kings of France, including Louis
XIV. (Allen, n.d.). In art, Irises appear in many instances,
such as paintings by the impressionist such as Cezanne,
Claude Monet and Van Gogh.
Hibiscus
The national flower of Malaysia, a symbol of
independence and nationhood. Its influences can be
seen at the carvings of the throne and the gilded panels
of the Balairung Seri. In Hindu religion, it is used as an
offering to Lord Ganesha and the Goddess Kali
(Unknown, 2015). Here, it was trimmed into spherical
bobs, a subtle shift from the strong emancipation of
human control over nature, into gentler nuance of
guidance and care
43
Figure 3.27. Iris in blossom. (Lim, 2016)
Figure 3.28 Hibiscus in the vicinity. (Lim, 2016)
44
Montgomery Palm
Honored with its slender upright nature, the species is
widely planted in the vicinity, coherent with the verticality
of the Former Istana Building. Unlike other palms
species such as the traveler's palm and the royal palm
with large bushy, feathery leaves, its leaves are
considerably small, tapered gently as it reaches the tip,
evocative of the elegance of austerity that Islamic
teaching urges.
Box hedge
The box is a stalwart in Western garden, due to its
versatile nature of pruning into various forms. Especially
in a Renaissance garden where order, symmetry and
structure are emphasized. Delicately clipped into
hedges, the uniformity of the hedges is not of oppression
or dominion, but of order, formality and calmness
Figure 3.29 Montgomery palms flanks the descending path
towards the field. (Lim, 2016)
Figure 3.30 Box clipped into hedges lines the border. (Lim, 2016)
45
Yew
A symbol of hope, as the tree constantly and faithfully
points towards the heaven. Due to its long life, it is often
referred to longevity. (Peters, 2011)
Hujan-hujan (Samania Saman Leguminosae)
A lush foliated tree, reached up to stories high, provides
ample sunshades for the vicinity.
.
Figure 3.31 Yew. (Lim, 2016)
46
Figure 3.32. Hujan-hujan tree. (Lim, 2016) Top: Figure 3.33. Trimmed hedges. (Lim, 2016)
Bottom: Figure 3.34. The garden adorned by fountain. (Lim, 2016)
47
3.2.2.3 Light
In Islam, light represents the presence of God, thus is
always honored and revered. The Qur'an states "God is
the light of the heavens and the earth." Form, space and
order can only be defined when light is present, just as
life can only be enlightened when God is present. In
modern architecture, light is always celebrated. I.M. Pei
once stated "In order to make space and form come
alive, you need light." Corbusier also manifested that
"Architecture is the learned game, correct and
magnificent, of forms assembled in the light." (James,
2009). In this hot tropical climate with year long summer,
light is carefully portrayed. Natural daylight casts a clear
definition of the building's mass and form, of an upright
structure, austere and poised, fit for regalia. With the
presence of daylight, water features such as lake and
fountains cast ever changing reflections of light which
brings out the silent beauty of water. In order to filter out
the strong direct beams of daylight harnessed to light up
the interior of the King's suite, awnings and louvers are
installed. From this practice, we can conclude that
instead of opposing what nature casts upon, vernacular
architecture works within their boundaries and get the
most out of it. The result is a beautiful scenery,
shimmering in hues of cream and gold under the
choreography of light.
Figure 3.35. The reflection of light casts a picture on the granite
floor. (Lim, 2016).
48
3.3 Architectural Influences
3.3.1 Corbusian International Style
The last and most recent architectural style that has
influenced the Istana Negara is Modernism. Over the
years as Malaysia moves into the 21st
century, our
architecture has been shaped to follow the advancement
of technology, and like many historical sites of Malaysia,
additions and extensions have been made to the
historical sites, adopting a more modern approach
compared to traditional. Whether this is due to
convenience or intentional it is unclear, but it does show
us the changes made over time. Modernism is a style
that revolutionalized the architectural world. The
masters, such as Le Corbusier, impacted the era greatly
as it opened a whole new door to the industry. The style
is significantly different from any other as it is much more
simplified, less physically decorated and pure in
geometrical language. The main palace wing of the
Istana Negara stays true to Palladian and British
Colonial, but as it progresses to the Balairung Seri wing,
there is a strong sense of Modernism applied. The
difference between the styles is starkly obvious and the
architectural elements between the two historical styles
and the modern one is vast. From the Sky bridge to the
entire wing of the Balairung Seri, the exterior façade is of
modernistic influence with just a hint of British Colonial in
the use of verandas and interior spaces. The external
walls also do not have any decorative elements like the
main palace wing and majority of the windows remain
flush against the walls, creating crisp shapes and giving
the Balairung Seri wing a very simple, clean look with
minimal decorations.
The floor plan itself has a very simple, geometrically pure
shape, a feature which is key in Modern architecture.
Though the interior spaces can‟t be considered
„modernistic‟ because of its lavishly decorated space, the
geometrical form of the plan itself is quite linear, and
49
mainly consists of a combination of rectangles and
squares, keeping the room shape functional.
FIgure 3. 36 The exterior of Balairung Building. ( Tey, 2016)
Figure 3.37 The skybridge transverse across the building. (Tey,
2016)
50
3.3.2 Machine Regionalism
A branch of development from the international style, as
Malaysian Architecture Critic, Mr. Rashid put with, this
language can be depicted as the regional response
towards climatic issue, just as the way a machine adapts
itself smartly for the user. In the Balairung Seri building,
this signature is clearly shown by the usage of arched
overhanging louvers around the perimeter of the
fenestration, to allow daylight penetration while reducing
heat gain. Besides, the use of "egg-crate" louvers filters
the glare of direct sunlight while allowing the
choreography of light to take stage at the considerably
plain exterior according to the shifting time. Figure 3.38 The rear elevation of the building. (Lim, 2016)
51
3.3.3 Islamic Architecture
Dikr
Which means remembrance, instill the user to constantly
contemplate the words of Allah. The incorporation of
Quranic verses in Arabic into the designs as shown in
Fig.3.39, is something quite noticeable in the throne
rooms of both palaces. In Islam, it is believed that
calligraphy is the highest form of art as it is the writing of
the divine script and is considered the purest form of
religious expression (Hilmi, 2014). As God is given first
place in Islam, Islamic architecture should portray the
remembrance of Allah. Therefore this remembrance of
God is achieved through the repetition of Islamic
elements as a constant reminder of God's presence and
teachings. Through this, a sense of unity is created in
these rhythmic elements revealing the eternal and infinite
nature of God‟s essence. An example of this as seen on
the interior elevations of the throne room at the old
palace, where the pointed arch on the windows is
repeated all around. The ceiling of the room also has
repetitive elements such as the domes which is also an
example of Islamic architecture.
Figure 3.39 The pelmet on the Singgahsana depicting the Quranic
Verses. (LIm, 2016)
52
Ikhlas
Bears the message of looking towards the heaven as an
expression of submission and conformity to God. The
complex is devoid of human and animal motifs as the
teaching of Quran in order to avoid idolatry. The
Balairung Seri is adorned with Bunga Raya, the national
flower of our country. Their Majesty's suites are
ornamented with frescos, plasters and paintings of roses,
irises, grapes, flora of all kinds. The appreciation towards
mother nature is a praised ettique in Quran, as this
signifies the humility of mankind under the awe divinity of
the Creator. Besides, the design of the garden,
resembling the idea of paradise is also inspired by the
teaching. With foliages and flora of wide array, vibrantly
reminds the family of the grace of Allah that bestowed
upon us, gracefully and abundantly.
Figure 3.40 The bedroom is adorned with cottage flora. (Lim, 2016)
Figure 3.41 The reception area of the apartment. (Lim, 2016)
53
Haya
Which is the concept of humility, descency and modesty
is also highlighted in the building. For instance, the
exterior design and the main entrance is not in a
frivolously grand scale. The Balairung Seri has a
mezzanine that transverse across the double volume hall,
which somehow truncated the grand percussion. But as
we entered the atrium, the procession slowly unraveled
in crescendo, which peaks at the Singgahsana after
reaching the inner sanctum. This reflects the concept of
Haya, which grandiose is not in par with the phenomenal
richness, but lies within the soul of the place.
In Haya, privacy of occupants should be protected via
creating indirect visual access between guests and
family area, by having a transition or double circulation
between the public and private zone. This is clearly
shown in the Balairung Seri's circulation, whereby the
royalty can access the hall through the curtained corridor
whereas the only access for the guests is the main
entrance door.
Figure 3.42 The Singgahsana. (Lim, 2016)
Also, Their Majesty's apartment is also in a modest scale,
well planned and organized according to the concept of
"dual-compartmentalisation," whereby the segregation
between male and female is highlighted for a specific
lifestyle. For instance, the washroom of His Majesty is
separated from Her Majesty's bathroom in concern of the
aurah preservation.
54
Figure 3.43 His Majesty's bathroom. (Lim, 2016) Figure 3.44 Hers Majesty bathroom. (Lim, 2016)
55
3.3.4 Victorian Style
An eclectic play of opulence and ornamentations, the
style celebrates the mix and match between architectural
influences from several eras, such as the Romanesque,
the Byzantine, the Renaissance and the Arts and Crafts
movement . This style is adopted at their Majesty's suite.
with plastered ceilings of Classical Revival, Rococo
inspired whiplash adorned mirror frames, Arts and Crafts
influenced wallpaper and furniture. It is believed that the
style is always regarded as the status quo of the rich.
Figure 3.45 Rococo inspired mirror frame. (Lim, 2016) Figure 3.46 Victorian style bedroom. (Lim, 2016)
56
4.1 Form
The annex building of Istana Negara is a tripled-storey
building connected to the main building, Muzium Diraja
(the Royal Museum). Constructed by reinforced concrete
as a primary structure, the building has a relatively
simple and solid massing as compared to the main
building. The combination of the Islamic architecture and
the modernistic expressionism expressed in the building
reveal the urge of our nation to catch up the pace with
other well developed countries.According to the Islamic
architecture, the most striking feature of all Islamic
architecture is the focus on the interior space as
opposed to the outside or façade. (Imam Reza, 2016)
Figure 4.1Exterior view of the annex building (Chin, 2016)
57
Exterior
From the bird's eye view, this building stands as a
combination of two simple rectangular massing with a flat
roof, orientated with its main entrance facing the east,
towards the west wing of the main building. As Islamic
architecture promotes simplicity in exterior, only
repetitive arched windows and arched colonnades are
used. Arches inherited from Roman and Byzantine
architecture is very common in Islamic architecture and
widely used in religious buildings. Structurally the arch
responds to the horizontal and vertical thrust perfectly
highlighting the importance of balance in Islamic culture.
(Muslim Heritage, n.d) However, the arches in this
building are mainly for decorative purposes. In short, the
exterior of the building only reveals the International style
and Islamic influence but does not tell much of a story
behind the building; conversely, the interior of the annex
building reveals a more luxurious design approach.
Figure 4.2Top view of the annex building (Lee, 2016)
Figure 4.3Perspective view of North Elevation (Foo, 2016)
58
Interior
Islamic architecture concept has been proven once again
in the interior of the grand Balairung Seri (the Throne
Hall) which stressed on the highly decorated and
ornamented detailing, contributing on the aesthetic
impact. The lighting plays an important role in making the
interior extravagant and lavish as it is also a symbol of
divine unity.
In the interior, the press room divides the double volume
Balairung Seri into two parts, cutting off the grandiose
flow towards the center of the main throne hall. However,
unlike the main building, the annex building is not
symmetrical. From the plan view, although the throne
hall is accommodated in the middle of the annex
building, the northern and southern wings share a
different proportion. (Refer to fig 4.4)
Figure 4.4Ground Floor Plan of Balairung Seri(Tan,
2016)
Figure 4.5Photo showing press room cutting through double
volume throne hall (Lee, 2016)
59
4.2 Space Planning
Nestled on a hill in the capital city of Kuala Lumpur at
Jalan Istana, the palace complex includes the Royal
component, Formal component, and Administration
component, with an area coverage of 11.34 hectares.
From the main entrance of this complex, a long palm tree
lined driveway made of square tiles will lead one to the
main part of the building, Royal Museum Gallery, and
later the annex building located in the west wing where
the grand Balairung Seri (the Throne Hall) is located.
There are two ways to entering the annex building, from
the colonnade corridor in the exterior, or from the sky
bridge in the first floor that connects the main building
together with the apartment of His Majesty and Her
Majesty.
Figure 4.6Palm tree lined driveway (Lim, 2016)
Figure 4.7Connectivity between the main building and the
annex building. ( Lim, 2016)
60
4.2.1 Entrance & Approach
Prior to passing into the interior of the annex building, an
oblique approach applied to enhance the effect of
perspective on the front façade. Rows of columns act as
the metaphor of imperial guardian welcoming the patron.
The transition of space is enhanced by the visual
contrast between the sheltered colonnade corridor with
ornate ceiling and the grandiose throne hall.
Upon reaching the entrance, the axis focuses on the
Singgahsana (the throne), giving an unobstructed view
towards it to emphasize its prominence. With special
royal yellow curtains as a backdrop - symbol of
beholding the supremacy, the majestic of royal family is
strengthened, enthralling one while entering.
Figure 4.9The Entrance of grand Balairung Seri. (Tan,
2016)
Figure 4.8The colonnade corridor. (Foo, 2016)
61
4.2 Islamic Architecture in Space Planning
Essence of Islamic architecture is an achievement of
delicate balance between functional and spiritual
elements (Hilmi, 2014).The grid organization allows the
orderly rows of columns to punctuate the spatial volume
and allow a measurable rhythm to be established. The
throne hall is the core of this annex building. Columns in
this enclosed system divide the 5 rows of ceiling into a
„coffered‟ pattern, creating a sense of harmony. This
expresses a characteristic of Architecture for Iqtisad,
Notion of “Heart”, Harmony. Islamic Teachings also
emphasize the remembrance of God (Allah) through
rhythmic precision of Islamic Motifs. In addition to that,
the concept of Architecture for Dikr is expressed through
the repetitive units of windows with pointed arches as
well as the motifs below, which is inspired by the national
flower of Malaysia, the Hibiscus.
Figure 4.10Repetition of ogival window and floral
motifs. (Foo, 2016)
Figure 4.11The ‘coffered’ ceiling. (Lim, 2016)
62
4.3 Connection between Main Building and Annex
Building
Although the staircase next to the waiting hall could lead
one up to the King‟s and Queen‟s suite, the sky bridge
still serves a very crucial function in which it connects the
annex building to the main building, offering a perfect
view towards the surrounding landscape. In the first floor,
it shows the Pass-Through-Space path space
relationships. The rooms on the first floor are divided by
a series of corridors leading into the pantry, Dining Room
of His Majesty and Her Majesty, mirrored finished
laundry room, Queen‟s Powder room, Study and Family
Room, and finally the Queen‟s Bedroom.
Figure 4.13Exterior view from the skybridge (Joshua, 2016)
Figure 4.12 Interior view of the sky bridge (Lim, 2016)
63
Ground Floor
In the ground floor, to accommodate multiple functions
and relationship with the user, the spaces are linked by a
dominant room, the grand Balairung Seri (the Throne
Hall). The throne hall is defined by quality of light as well
as changes in ceiling height rather than only wall panels.
In Malay culture, light marks the presence of God and
symbolize goodness, while yellow symbolizes royalty,
accomplishment and virtue. Ornate ceiling pelmets with
hues of gold hung above the double volume
Singgahsana are decorated with chandeliers imported
from Austria, creating a divine unity, giving a more royal
self-experience. Figure 4.14 Simplified Ground Floor Plan. (Foo, 2016)
64
On the north wing adjacent to the dominant room are
meeting room, resting room of sultans and governors,
dressing room, living room, and toilet. Whereas the
service rooms such as mechanical & electrical room,
kitchen, storage room are concentrated on the north.
Figure 4.15Chandelier and lighting effect in the atrium of
Balairung Seri (Foo, 2016)
Figure 4.16 Panaromic view of double volume Balairung
Seri. (Joshua, 2016)
65
First Floor
Private spaces are mainly accommodated in the first
floor, the King‟s and Queen‟s suite, and semi-private
space such as press room and storage room.
When coronation or investiture of the honored being
hosted, the reporters of different radio station invited will
be assigned to different division along the corridor of the
press room which are separated by partition. This
corridor also direct the workers to the storage room,
toilet, as well as the kitchen in the ground floor, basically
all the service room in southern wing.
Figure 4.17 Simplified first floor plan ( Foo, 2016)
66
First Floor : King's and Queen's Suite
In response to the climate in Malaysia, the Queen‟s
bedroom are located at north-west direction. In addition,
the west façade are well shaded by the canopy of tree,
thereby minimizing the solar heat gained. These rooms
are heavily influenced by Victorian style, representing the
luxurious and lavish royal lifestyle. Hung above the
ceiling in the Queen‟s bedroom are the chandelier and
painting of floral and foliage as well as motifs devoid of
animals or human figure, showing the incorporation of
Victorian style with Islamic culture.
Islamic teaching emphasizes gender segregation in
sacred and private space. Thus, the bedroom as well as
washroom for the King and Queen are separated,
showing their respect to each other. In addition to that, to
address privacy, the orientation of door is refrained from
facing one another.
Figure 4.19 Gender segregated washroom (Yeoh, 2016)
Figure 4.20 Victorian style interior. (Yeoh, 2016)
67
Lower Ground Floor
Right below the Singgahsana there is the lower ground
floor that accommodate a utility room and restroom for
both gender. Looking towards the exterior of the building
are beautiful landscapes including lake and greeneries
that obey the Islamic teachings, creating a calming and
peaceful effect to the atmosphere. According to the
senior architect Captain David Wee, he thinks that the
residential and official areas must be linked rather than
knit together. (Masterpiece, 1999) Thereby, the space
planning of this building is a result to that, divided into
few section: south wing as machinery of the royal
household, the centre and north wing in the ground floor
as administrative and official areas, whereas north wing
in the first floor as residential area. The circulations
pattern in this building also designed in such a way that it
helps to define the privacy for different rooms, avoiding
access of public to the residential area of His Majesty
and Her Majesty. However, there is a wasted double
circulation at the press room and perhaps, that is the
only imperfection in this planning.
Figure 4.21 Simplified Lower Ground Floor Plan. (Foo, 2016)
68
4.3 Singgahsana
Singgahsana, the Throne is the symbol of supremacy
and of a Government where the king rules with honor
and sovereignty. It is elaborately designed to represent a
structure befitting the official use of His Majesty in
carrying out his royal duties. This is the fourth version of
the throne, renovated during the reign of Almarhum
Sultan Azlan Muhibbuddin Shah and used by the four
subsequent Yang di-Pertuan Agong. Singgahsana is
made up of 4 parts, the throne, Dais structure, roof and
background. In addition to that, the steps combined
together symbolizing the highest status of the National
Throne in the country. It is designed by the architect of
Jabatan Kerja Raya, Kapt. (L) David Wee and Encik
Shahar bin Karim after studying the design of other
Singgahsana in Malaysia. The throne is decorated with
carved motifs that combine the arabesque features and
sprinkled hibiscus motifs, filled with the stately charm of
sovereignty, replete with traditional amenities.
Figure 4.22Side view of the grand Singgahsana. (Foo, 2016)
Figure 4.23 The throne. (Foo, 2016)
69
Takhta
The Malaysian society looks upon the Singgahasana as
a symbol of royalty and honour because it is where Their
Majesty are seated. Lined with fine velvet and coated in
gold hued copper, it exemplified the status of regalia in
grandiose. The carvings embracing the cushion bears
the symbol of paddy stalks, which signifies abundance.
The backrest is embroidered with the coats of arms of
the nation, with another etched on the top, to signifies
the constant upholds of the nation's dignity.
Figure 4.24 The Seat, known as takhta. (Leong, 2016)
70
Pelmet
As a nation with multi-racial society, rich in cultural traits
and traditional Islamic handicraft, the motifs of siku
kelawar and hibiscus, originated from Peninsular
Malaysia, Sabah and Sarawak in Singgahsana
symbolize the inspiration of multi-racial people of the
country and our desire to achieve national unity, peace
and prosperity, are the result of the harmonious
acculturation from different states thereby highlighting
the national identity and projecting the prosperity,
harmony and rich multi-racial society.
The throne is covered with 2 pelmets (bumbung), the first
carries inscriptions of glorious names of Allah. The
second carries the inscription of a Quranic verse, which
means, " Allah who holds the power of sovereignty, it is
You who gives the power to govern to whom You wish
and its is You withdraw the power to govern from who
You wish." ~ Surah Ali-Imran verse 26. The verse is so
inscribed that
the words " the power to do govern" are placed right in
the middle and forms the center of whole verse. A
sentence of Al-Quran is carved on the top of the
Singgahsana to symbolize Islam as the national religion
in Malaysia, Yang di-Pertuan Agong as Ketua Agama
Persekutuan.
Figure 4. 25. The pelmet with gilded inscription.
(Leong, 2016)
71
Background carvings
The motif of Singgahsana symbolizing the nationality of
Peninsular Malaysia with Sabah and Sarawak. The initial
ideas of the carvings on Singgahsana was from
Pengerusi Jawatankuasa Pertabalan, YB Tan Sri
Muhammad Ghazali Shafie. However, Jabatan Kerja
Raya, Kementerian Kebudayaan Belia dan Sukan and
Institute Teknologi MARA worked together to produce
the final arrangement of motif. Inspired by our national
flower, the motifs carved by Pakatan Juru Ukir
Tradisional are coated in gold color bringing the feeling
of royal supremacy to the Singgahsana. Islam states that
it is the responsibility of every individual to treat all
creation with respect, and God deserved the most
respect and dignity among all. Respect begins with
loving and obeying the commandments of God and from
this respect flow all the manners and high standards of
morality that are inherent in Islam. (The Religion of
Islam, 2014) In response to this, the throne dais is
designed as an upright structure to remind all creations
and human beings to constantly remember and respect
their creator, Allah S.A.W.
Figure 4.26 and 4.27 The background carvings. (Leong, 2016)
72
Pillars
The 7 pillars represents the whole world, consist of 7
layers of sky and earth. Whereas the row of 5 pillars that
stand behind the throne represents the 5 principles of
National Ideology (Rukun Negara). With these
meaningful design concept applied on the throne,
besides preserving the interesting Islamic cultural in our
country, it also reminds every Malaysian to be proud of
our own identity and together stride towards a developed
country.
Figure 4.28 Closer shot on the carvings. (Leong, 2016)
73
5.1 Structural
5.1.1 Reinforced Concrete (RC)
Concrete is a mixture of cement, sand and gravel or
other aggregate and water. Concrete is easily formed to
a wide variable of shapes and sizes. Although concrete
has high compression strength, it is weak in terms of
tensile strength, therefore it is a brittle material. Because
of the lack in tension strength, steels are required to be
used in conjunction of concrete for strengthening and
reinforcing the tensile strength of concrete. The
combination of the material, concrete and steel rebar are
better known as "Reinforced Concrete".
Advantages of Reinforced Concrete :
- Great compressive and tension strength
- Better fire resistance than steel
Known as the pioneering material in the late 19th
century, further escalated during the International style
period, thanks to Corbusier, as Perret (n.d.) stated, "
concrete frame as an agent for resolving the age-old
conflict between the structural authenticity of the Gothic
and the Humanist values of classical form " (Figure 5.1)
Thus, concrete is being incorporated to the architecture
to express a touch on modernism.
Figure 5.1 Exterior façade view of the Balairung Seri (Lee, 2016)
74
Structural Concrete Elements
Walls
Walls (Figure 5.2) are vertical structure erected to set a
boundary from the outside.
Slab
Slabs (Figure 5.3) are thick horizontal structure found in
building floors and roof. The slab carries gravity and
lateral loads.
Beams
Long horizontal structure (Figure 5.4) found supporting a
level or roof. Beams transfer loads from the slab to the
columns.
Figure 5.4Interior ceiling and beams (Lee, 2016)
Figure 5.2Exterior wall (Lee, 2016)
Figure 5.3Roof slab (Lee, 2016)
75
Columns
Columns (Figure 5.5) are vertical structures that
transfers loads from above to the foundation. Here, the
columns are fluted, due to the preference in the era,
whereby fluted columns had substituted Tuscan columns,
where stretches of flutes exemplifies its verticality,
suggesting formality.
Footings
Footings (Figure 5.6) are the foundation of the building. It
transfers the load from above and distributes it to the
ground.
Figure 5.6Concrete Foundation (Lee, 2016)
Figure 5.5Columns at the porch (Lee, 2016)
76
In (Figure 5.7), verticality is emphasized with the usage
of columns throughout the building. View of the east
elevation consists of slender vertical columns, tapering
the flow from lower ground floor towards the roof..
(Joshua, 2016)
In (Figure 5.8) Walls are texture sprayed to give a rough
finishing which can withstand weathering better than
smooth surface and also to disperse sunlight smoothly to
reduce glare. (Tey, 2016)
Figure 5.7View of the east elevation consisting of
tall vertical columns (Lee, 2016)
Figure 5.8Walls spray painted to give a rough
finishing emphasizes the horizontal contrast
between the smooth surface (Tey, 2016)
77
5.1.2 Steel
In the 19th century, steel is popularized at the
intervention to replace the brittle iron, allowing human to
build higher inventing the skyscrapers. Steel is a type of
alloy made up of the composition of carbon and iron. The
element, carbon gives a unique strength and other
properties that are suitable for structural material in the
building industry. In the case of the Balairung Seri, steel
rebar are used in conjunction with concrete to
compensate for the weak tensile strength of the concrete
by increasing the tensile resistance. These are shown in
(Figure 5.9) and (Figure 5.10).
Advantages of Reinforcement Steel (Rebar) :
- Good strength, resist shear, tension and compression
forces
- Works well with concrete
- High modulus of elasticity , high degree of stiffness
Figure 5.10Arches made with the usage of reinforced concrete
(Lim, 2016)
Figure 5.9Diagram on concrete reinforced with steel rebar
(Lee, 2016)
78
Steel Trusses
Prefabricated steel trusses are found in the roof of the
Balairung Seri porch. The steel trusses are prefabricated
then transported to site and bolted. This is shown in
(Figure 5.11).In the porch roof, timber is used as rafters
in conjunction with the prefabricated steel trusses. This
method will ensure a lightweight and strong roof. This is
shown in (Figure 5.12).
Figure 5.11 Steels are welded together (Lee, 2016)
Figure 5.12 Steel trusses and timber are seen supporting the
structure (Lee, 2016)
79
5.1.3 Timber
Unlike steel and concrete, timber is not made of
homogenous structural properties. It does not behave
equally in all directions when forces are applied. It is cost
saving and less time consuming to build with the
implementation of prefabrication.
In the Balairung Seri, no timber columns were found to
be the structural support for the building except for the
timber rafters found in the porch roof. Initially, timber was
thought to be used as structural columns for supporting
the levels in the interior between levels. However in
(Figure 6.13), proved that the timber columns within the
room are mainly used for decorating the interior and do
not provide any structural support for the ceilings.
Advantages of Timber :
- Stronger than other construction materials in terms of
strength to weight ratio
- Economical, durable, lightweight and easy to work with
Figure 5.13 Rotten interior timber column
and a badly damaged wall at the edge of
the meeting room (Lee, 2016)
80
5.2 Finishing
Figure 5.14. Finishing diagram at Ground level. Most of the finishing are focused on public area. (Lim, 2016)
81
Figure 5.15. Finishing diagram at First level. Most of the finishing are focused on the suites (Lim, 2016)
82
5.2.1 Exterior
It is evident that a great attention to detail and quality
was paid to the finishing of the palace‟s rooms. The most
elaborate finishing can be found in the main throne hall
as well as in the rooms of the royal apartment. The
working areas and spaces relating to servicing such as
the banquet kitchen are not decorated and finished with
their function in mind rather than aesthetic
considerations.
Plaster rendering
The facade is rendered in plaster on top of the concrete
(Figure 5.14) and brick elements. A slight difference in
the applied rendering technique results in a repetitive
pattern of rough and smooth finishes, which breaks the
monotony of the relatively plane elevations.
Polished Granite
The two steps (Figure 5.15) leading from the colonnade
floor level into the main throne hall and into the holding
room are covered with polished granite slabs of ¾ Inch
thickness.
Figure 5.16Rendered plaster on top of the concrete
(Tey, 2016)
Figure 5.17 The steps (Lim, 2016)
83
Granite tiles
The floor of the colonnade (Figure 5.16) as well as the
planter boxes adjacent to the palace buildings are tiled in
small, homogenous square tiles of 10cm x 10cm, which
is a continuation from the tiled floor in front of the main
palace building. The tiled surface ends at the southern
end of the colonnade. From that point onwards, a tarred
road surface continues.
Concrete roof tiles
The roof of the colonnade (Figure 5.17) is covered with
standard size painted concrete roof tiles.
Figure 5.19 Roof of the colonnade (Lim, 2016)
Figure 5.18 Floor of the colonnade (Lim, 2016)
84
5.2.2 Interior
Timber Panels
As can be seen in the photographs, the main throne hall
is elaborately decorated using fine materials and
workmanship. Most noticeable are the wooden panels
and carvings decorating the length and width of the
throne hall. From older documents it appears that the
main panelling was made from a darker wood (Figure
5.18) possibly suggesting the use of local tropical
hardwood. However whether the panels are made of
solid timber or real wood veneer could not be established
since they had been painted with white lacquer. The
carvings placed on top of the main panels (Figure 5.19)
are made of gilded hardwood and since they were made
by craftsmen from Kelantan it is likely that the wood is
also from a local source and of good quality. No joinery
is visible in the carvings and trimmings, further
suggesting that they were made from single pieces of
timber. Figure 5.21 Roof of the colonnade (Lee, 2016)
Figure 5.20 Old balairung in dark wood panelling (Lim,
2016)
85
Timber panel with embroidered fabric
The walls of the private rooms (Figure 5.25) are covered
in elaborate paneling. In a damaged area of the meeting
room paneling it could be observed that the paneling is
installed on a timber frame that is fastened into the main
wall. The elements of the paneling consist of block
boards, real wood veneer as well as solid hardwood
trimmings. The main panel surface (Figure 5.26) are
lightly cushioned and covered with Viennese, woven
material with a high thread count and elaborate patterns.
Figure 5.23 Detailing on ceiling (Kong, 2016)
Figure 5.22 Private room (Tey, 2016)
86
Plaster Ceiling
The elaborate detailing is continued on the ceilings
(Figure 5.20), which are given a coffered appearance by
cladding the ventilation ducts that traverse the throne hall
in regular intervals in plasterboards and installing a
plasterboard ceiling at the upper of the ducts level.
The plasterboards (Figure 5.21) appear to be of good,
thick quality as no sagging and misaligned joinery can be
seen. The plasterboards are further decorated with
gilded moldings. It could not be established whether
these were made of stucco, plaster, solid timber
trimmings or any other material.
Carpet
The entire floor of the throne hall is carpeted. The plush
carpet (Figure 5.22) was imported and custom designed
to fit the room.
Figure 5.24The plasterboards inside of the throne
(Lim, 2016)
Figure 5.25 Plush carpet (Lim, 2016)
87
Parquet Flooring
Parquet flooring was installed in the sky bridge (Figure
5.27), the corridors (Figure 5.28) of the private quarters
as well as the bedroom, personal dining room, powder
room and study room. Detailed intarsia are inlayed into
the parquet floors in some areas, with arabesco motifs.
Figure 5.26 Parquet flooring in the sky brige (Lim,
2016)
88
Marble
The bathroom walls (Figure 5.30) and floors in the
private quarters are tiled with marble tiles, which were
laid with a very thin grouting line. All fixtures such as
soap dish holders, taps, and rails were gilded.
Mirror
Many of the cupboard doors (Figure 5.29) are paneled
with mirrors to create an infinity view. In Malay tradition,
it is believed that mirror can prevent ominous affairs
Figure 5.28 Mirror finished cabinet doors (Lim, 2016)
Figure 5.27 King’s bathroom (Lim, 2016)
89
6.1 Columns
Columns are defined as rigid and relatively slender
structural members designed to support compressive
loads. This freestanding monument can be used as a
decorative component as well as supportive structure in
a building. A column basically made up of 3 parts, the
capital, shaft and base. In the year of 1980s, concrete
and reinforcement are known as the modern building
material thus widely used.
Figure 6.2 Difference between
structural and decorative column
(Tey, 2016)
Figure 6.1 members in a
column (Tey, 2016)
90
Structural :
Doric Columns
Along the corridor, not all the columns are structural.
Figure shows the structural Doris columns that is
standing alone. Among the columns that come in pairs,
some are only for decorative purpose.
Engaged Columns
Engaged columns are columns embedded in the wall but
leaving partially of it projected from the wall. In 1980s,
reinforced concrete are widely used in construction.
Engaged concrete in this case could be seen from the
façade, giving a measurable rhythm to the building.
Figure 6.4 Engaged column exposed in façade. (Eng, 2016)
Figure 6.3 The Doric Columns supporting the porch. (Eng,
2016)
91
The construction of the Doric columns can either be pre-
casted or cast-in-situ, but to speed up the construction
time, the columns are most probably pre-casted. First,
the mold of the fluted columns are prepared, usually
applied with a coat of bitumen for easy detach after the
cast is done. Then, a core is placed at the center.
Concrete are then poured into the cast and left to cure.
Columns are usually casted in segmented drums for
easy transport. After the drums are completely cured, the
core is detached and the drums are assembled
accordingly, cleaned and mortared to sealed off the gaps
between the drums if preferred and applied with a coat of
paint.
Figure 6.5 Column part terminologies. (Tey, 2016)
92
Decorative Tuscan Column
The columns found in the Grand Atrium of the Balairung
Seri are known as Tuscan column influenced by Roman
architecture. Tuscan is one of the oldest and most simple
architectural form practices in ancient Italy. It is well-
known for its plain design without any carvings or
ornamentation.
The construction of these columns are ready made by
polyurethane, ready to be finished by paints. It is hollow
and light, easy to be installed.
Figure 6.7Drawing showing relationship of structural and
decorative column in the throne (Neoh, 2016)
Figure 6.6 Parts of Tuscan column (Tey, 2016)
93
6.2 Roof
There are two types of roof in Balairung Seri which
include corrugated metal pitched roof and pyramidal
concrete tile roof. The parapet of the main building and
the annex building is connected by the sky bridge and
one can access through the expanded metal as shown in
figure. On top of the annex building are two corrugated
steel pitched roof, gable and shed roof. Two sloping
gradient joint by the ridge cap form the gable roof at the
east, extends over the concrete wall to give overhangs.
Figure 6.8 Bird eye view of annex building roof. (Lee, 2016)
Figure 6.9 Expanded metal walkway between the roofs of Main
and annex building. (Lee, 2016)
94
In general, the inner frame are known as ladder frame,
consists rafter to allow fixing of standard corrugated
metal sheet. Beneath the metal roof is the concrete
gutter. The run of the rafter is taken from the inside face
of the top plate on the higher wall to the outside face of
the plate on the lower wall. When figuring the overhang
at the higher wall, it‟s included the thickness of the stud
wall and the rise it the vertical distance from the top of
the lower plate to the top of the higher plate.
Figure 6.11 Concrete gutter. (Foo, 2016)
Figure 6.10 Illustration showing concrete gutter section and
fixing on metal sheet (Foo, 2016)
95
Lie above the corridor are the concrete tile roof with
valley gutter. A finishing trim called a barge board is
nailed to the last rafter. This barge board is sufficiently
wider than the rafters to cover the entire end rafter
including the tilting fillet. A soffit is then fixed to the
underside to match the soffit under the eaves. The fascia
can be mitered to the barge board at the foot while the
top of the barge board at the apex of the roof is mitered
to the matching barge board on the other side.
Figure 6.13 Concrete tile roof & concrete gutter.(Lee, 2016)
Figure 6.12 Section of concrete tile roof.(Neoh, 2016)
96
7.1 Columns
Columns are basically cylindrical structures that supports
the imposed load of a building. The columns at the
Balairung Seri are Doric and Ionic. The columns can be
seen easily along the pathway towards the entrance of
the Balairung Seri (Figure 7.1). The walkway outside the
main entrance is shaded and supporting the structure
are 28 Doric columns that consist of both single and
paired columns. The placements of the columns are
shown in (Figure 7.2).
The placement of the Doric columns are mirrored when
seen from plan. Even on both sides, the columns give
the structure balance and a sense of symmetry. The
columns are also placed in a singular motion providing a
sense of direction for users to follow leading to the main
entrance.
Figure 7.2 Placement of columns (Tey, 2016)
Figure 7.1Single and double columns (Lee, 2016)
97
In the Balairung Seri, the columns are long, cylindrical
and thick in diameter. Together with the ornaments and
arches in the Balairung Seri (Figure 7.3), the cylindrical
columns add to the sense of royalty and greatness as
size defines how profile the place is during its period of
time. The columns are repeated from the entrance to the
throne area (Figure 7.4) inside of the Balairung Seri and
this portrays a sense of stability and strength of the
building.
Figure 7.3Columns in Balairung(Lee, 2016)
Figure 7.4Throne area inside the Balairung (Lee, 2016)
98
7.2 Pilasters
The pilasters found in the meeting room (Figure 7.5) of
the Balairung Seri is Ionic. The pilaster is repeated
throughout the room and can be seen bent in certain
corners of the room especially near the restroom
entrances. The Ionic pilaster adds to the sense of unity
of the meeting room.
The pilasters in the Balairung Seri (Figure 7.6) was
designed based on functionality. Due to the immense
weight of the building and the size of the columns, the
pilasters are designed to spread the weight evenly
throughout to avoid any unstable factors. Also, this adds
to the sense of strength the building intend to portray in
conjunction with the presence of royalty.
Figure 7.5Pilaster in meeting room (Lim, 2016)
Figure 7.6Pilaster in Balairung Seri (Lim, 2016)
99
7.3 Doors
The doors within this royal building have significant
designs that resemble those from the Victorian era and
as for most doors to be exact are of Palladian style.
Certain characteristics that make up the Palladian-styled
doors are elliptical fanlights or in some cases also
adorned with sidelights, both covered with clear or
stained glass panels. These types of doors are located
mainly at the main entrances or doorways and are found
in Palladian-styled villas.(Figure 7.7) shows the door
King and Queen‟s suite while (Figure 7.8) shows the
entrance door to the main Istana Negara building.
Figure 7.7 Entrance of to the King and Queen’s suite
from the sky bridge (Lee, 2016)
Figure 7.8Entrance to the main Istana Negara building
(Yeoh, 2016)
100
These doors show clear symmetries as being the
characteristic of Palladian architecture. The only slight
modifications to the doors that are similar to those of the
Palladian style is the absence of the pediment of a
typical Palladian-styled door. The doors within the
Balairung Seri (Throne Hall) have been altered slightly
by vernacular and cultural designs, hence leading to a
varied door with similar characteristics to the Palladian
doors.
Most doors which have the pediment removed still
maintain the pilasters at the both sides of the door.
(Figure 7.9) shows a smaller type of wooden pilaster
without the pediment on the top.
Apart from the absence of the pediment is the cultural
and Islamic influence which have replaced the Victorian
human motifs with the floral motifs. The usage of floral
motifs (Figure 7.10) is due to the influence of Islamic art.
Figure 7.9 Entrance to the Holding room of the Balairung
Seri (Lee, 2016)
Figure 7.10Wooden carvings and floral motif which
are painted gold as ornamentation (Lee, 2016)
101
Most of the doors within the Balairung Seri and the Royal
bedrooms are 3-paneled doors, ranging from equal sized
panels to panels with the ratio of 8:1:3. Most doors
located within the Royal living areas are simple and
clean whereas doors which lead to the Balairung Seri
and the meeting room are ornamented with floral motifs
(Figure 7.11), showing the royal status towards the
people. Apart from the decorations, doors which lead to
main areas are of wooden double leaf doors (Figure
7.12) creating a grand entrée into each main space. This
is clearly shown by the double doors that lead into the
Balairung Seri from the porch.
Since the construction of the Balairung Seri, almost all
doors are still in a good condition only with a few doors
having a missing door knob. In total, there are 15
prominent types of doors located within the annex
building of the Istana Negara.
Figure 7.11Wooden double doors with floral
carving, leading to the Meeting Room (Tey, 2016)
Figure 7.12Simple wooden double doors,
leading to the Queen’s bedroom (Lee, 2016)
102
7.4 Windows
A window is an opening that is used for the admission of
light, sound and air. It is built on a door, the wall or
sometimes the roof. It is normally transparent and
sometimes translucent. Windows are often arranged also
for the purposes of architectural decoration.
The windows in Balairung Seri are pointed arch window
(Figure 7.13) which is one of the defining characteristics
of Gothic architecture. The ornaments of windows in
Islamic architecture makes use of specific ornamental
forms for example mathematically complicated, elaborate
geometric and interlace patterns. These are the common
features which serve to decorate a building and these
Islamic ornamentations are symbolizing the infinite and
the nature of the creation of Allah (the god). Figure 7.13Pointed arch window inside Balairong Seri
(Lee, 2016)
103
(Figure 7.14) shows that the floral ornamentation also
known as Ataurique in Islamic architecture, these
designs composed of various leaves and flowers. They
are having diverse patterns, such designs are produced
separately, jointly, convergent and embracing. In this
case, the decorative unit is composed of a group of
overlapping, intertwining, symmetrical and regularly
repetitive floral elements between each others. The
hibiscus in the middle also represented the national
flower for Malaysia.
Figure 7.14Floral ornamentation in Balairung Seri
(Lee, 2016)
104
7.5 Ceiling
A ceiling is considered an interior surface that covers the
upper limits of the room. The most common materials
used for ceiling are plaster or plasterboard which had
been use for centuries and drop ceilings which are
ceilings that is suspended below a pre-existing ceiling.
There are other types of ceiling such as groove ceilings,
coffered ceilings, concrete ceilings etc. The purpose for
having ceiling is for insulation and fire-proofing,
sometimes for decorative purposes.
Coffered Ceiling
The ceiling of the Balairung Seri is lined up with repeated
Coffered ceiling panels, gilded and ornamented with
geometrical and floral motifs. The repetition is an Islamic
teaching, in remembering the words and presence of
God always.
Figure 7.15 Coffered ceiling at Balairung Seri. (Lim, 2016)
105
Plasterboard Ceiling
The Ceiling in the dark room (Figure 7.15) of the
Balairung Seri is plasterboard ceiling which are easy to
maintain. The ceiling doesn‟t have any complex design
on it but rather more on the simplistic approach. The
ceiling in the room is plain but has plastered coving
around the borders. These covings (Figure 7.16) are
arranged in uniform order to maintain the balance of the
overall outlook of the ceiling and also to give off a sense
of simplicity and pristine look.
Figure 7.16Covered skirting arranged in and orderly
manner (Lee, 2016)
Figure 7.17 Plasterboard ceiling with coving
surrounding (Lee, 2016)
106
7.6 Lighting
The word „chandelier‟ originates from the French word
„candere‟ meaning “to be white, glisten.” (Ling, 2015)
From its beginnings it was associated with wealth and
power and a burning symbol of success and social
standing. (Alan, 2011) To exhibit a level of prestige as a
grand palace, in this Istana Negara chandeliers are
hanging in nearly every room, including dining rooms,
bedrooms and so on. (Figure 7.17) shows the chandelier
used in the Balairung Seri.
Through centuries of development, the design of
chandeliers evolved from the primitive brass or silver
chandeliers that reflects the light through its polished
metal surface to rock crystal and crystal glass
chandeliers that reflects and refracts light through its
pristine crystalline gem stones that adorned it.
Crystal Glass Chandeliers
Crystal glass chandeliers with 15 light arms from Vienna
are used in the Balairung Seri to provide a sense of
elegance, together with the elaborately ornamented
ceilings and wall panels. The reflection and refraction of
glass amplifies the grandness of the space in a warm
aura.
Figure 7.18Chandelier of the Balairung Seri. (Lee, 2016)
107
Brass Chandeliers
Polished Brass Chandeliers are installed at the ceiling of
sky bridge and the Queen's bedroom. The chandeliers
are usually used for night illumination as during day time,
the corridor is showered with ample daylight and the
windows at the bedroom allows daylight to illuminate the
space. Thus, brass chandeliers are opted due to its
smooth and warm reflection of light casted by metal
surfaces, giving the space a soothing ambience of
serenity when night falls.
Figure 7.19 Chandelier in the sky bridge (Lim, 2016)
Figure 7.20 Chandelier at the bedroom with motifs of
blooming roses (Lim, 2016)
108
7.7 Wooden Carvings
The artistic essence of the Malay community flows
through the entire Balairung Seri, strongly shown by the
numerous designs of wood carvings and floral motifs, or
also known as arabesque, throughout the building. Wood
carving was developed as a form of art within the Malay
community beginning from the east coast of the
peninsular Malaysia such as Kelantan and Terengganu.
(Figure 7.19) shows a panoramic view of the throne
along with the heavily adorned wall.
As such the numerous amount of wood carvings found
within the building states as a reminder for the ruler of
the country to not forget about the roots of the Malay
community and the history that made the nation standing
with pride. Henceforth, 60 master craftsmen from
Kelantan were hired to produce the intricate carvings to
be fitted within the Balairung Seri.
Figure 7.21 A panoramic view of the throne along with the
heavily adorned wall (Lee, 2016)
109
The panels of wooden carvings above the throne and on
the adjacent walls adhere to the recurrent theme of
Malay art where there will be a certain arrangement and
configurations of motifs and patterns. The repeated
motifs of the seeds and flowering tendrils depict the
abstract manner of bursting forth with life and energy.
The flower in the middle reveals the beauty and grace
while the reversed image of flowing vines creating a
mirrored motif symbolizes both the beauty and majesty
of the divine (Farish and Khoo, 2003).
The explanation of the abstract art is further elaborated
and shown in (Figure 7.20) where the same recurring
theme is found throughout the room. The carvings are
inspired by our national flower, the Hibiscus, to portray
the nation.
Thus whenever any ceremonies are held by His and Her
Majesty, the rulers are not just surrounded by ministers
and royalties but also surrounded by the aura of the
people symbolized through the national flower. Vertical
axis line in the centre of the motif giving a sense of
balance and symmetry. On this axial line, the right part of
the motif is mirrored to the left.
Twig
Source or
BungaPunca
Leaf
Flowering Tendrils
Figure 7.22A closed up image of the wooden carved panels
below the coffered windows (Lim, 2016)
110
Apart from the flowers, the most prominent recurrent
design pattern is the unending recurrent spiral of the
tendrils and leaves which is known as the awan larat,
roughly translated as „meandering clouds‟. The awan
larat design is in form of spiral which begins from a fixed
centre, the Hibiscus flower, and moves outwards as it
expands. The significance of the spiral is the
representation of the unending ebb and flow of life
(Farish and Khoo, 2003). Apart from it also symbolizes
excitement, alive and fresh instead of being wilted as it
includes elements of harmony. The centre point of origin
is represented by the unity of God itself, creating an
abstract meaning of God being the centre of the universe
and the axis of which lives depend on.
Figure 7.23 Wooden patterns carving on the top of the coffered
windows (Lee, 2016)
111
8.1 Site Context
Figure 8.1. Aerial View of Old Istana. (Google Maps, 2016)
Former Istana Negara
The 11 hectares old Istana Negara is tucked amidst a
hilly terrain, with forest embracing the context, a perfect
emblem of the good Feng-shui in the Chinese tradition,
due to its original Chinese owner. In Feng Shui, it is
believe that a building built under the backdrop of a hill
can auspiciously protects the residences from ominous
affairs.
Figure 8.2. Aerial View of New Istana. (Google Maps, 2016)
New Istana Negara
The new 97.65 hectares Istana Negara is perched on
Bukit Damansara suggesting its authority along Jalan
Tuanku Abdul Halim (figure 8.2). Here, Instead of
towering forest, flat manicured vegetation tumbles across
the land. Offering a view towards the throbbing city
around the vicinity.
112
8.2 Space Planning
Figure 8.3. Aerial View of Old Istana. (Google Maps, 2016)
Former Istana Negara
Aligned with the Qibla line, facing Mecca, the Balairung
Seri of old Istana Negara is located at the east wing of
the compound symbolizing the spirit of sun, rising from
the east.. In the former Istana Negara, the separation of
the public and private zone are not demarcated in a
horizontal planning, instead it is separated through
vertical floors.
New Istana Negara
In the New Istana, a clear separation of public, and
private zone is shown, which the Balairung Seri,
considered as a public area is located at the East wing,
with other public zones such as Banquet Hall and Surau.
As we travel towards the opposite wing, the space turns
into more private zone, such as the Guest Lounge, Royal
Office and Royal Suites.
Figure 8.4. Aerial View of New Istana. (Google Maps, 2016)
113
8.2 Architectural influences
8.2.1 Exterior
Former Balairung Seri
As shown in figure 8.3 differs slightly in comparison to
the main building, it leaves behind the British Colonial
and Palladian influences seen in the main building to
take on characteristics of Modernistic Expressionism and
Primitive Regionalism that were heavily influenced by the
Corbusian International Style which had begun to spread
globally at the time. This change is quite significant in the
Malaysian context as the nation had just gained
independence and was in seek of its own architectural
identity. Thus, International style is adopted as the
expression of an recognized nation in the international
platform.
Figure 8.5. Exterior of the main building with the East wing on the
right.(Lim, 2016)
114
New Balairung Seri
The construction started in 2007, from an exterior view,
the building is an amalgam of Islamic architecture and
Modernism, carrying the metaphor of staggered sirih
(betel). Unlike the old Istana Negara, whereby the
complex is divided into two sections of different style due
to its different construction period, the entire complex
speaks of one language, symmetry in the central atrium
of castellated onion domes, flanked with two side wings
of gabled pitched roof in tiles of violet. From the gateway
(figure 8.5), the entire complex is framed gracefully with
the golden dome situated right at the center. From a
cultural and historical view, it is clear that the New Istana
Negara is planned accordingly in a single phase, to
demonstrate the affluence of the land, after marking its
50 years of independence since 1957.
Figure 8.6.. Exterior of the New Istana Negara. ( My Sumber, n.d.)
Figure 8.7. The grand gateway view. (Bretuk, n,d,)
115
8.2.2 Interior
Former Balairung Seri
Upon entering the Balairung Seri at the Old Palace, one
is able to witness the double volume room decorated in
rich hues of yellow – the colour of royalty in Malaysia.
Following the teaching of Haya (modesty), the atrium is
divided into two sanctum by a traversing mezzanine.
Patrons experience an atmosphere of serenity and honor
as they are led up to the Singgahsana (Throne) that
stands in beauty and grandeur at the head of the room
as shown in figure 8.6, through the lead by the
colonnades and arched windows. The space is lit up by
17 chandeliers in a soft warm hue. Floral motifs having
originated from Peninsular Malaysia, Sabah and
Sarawak, decorate the inner wall panels of the room as
well as the Singgahsana and are fine examples of
traditional Malay handicraft indicating that the country is
a proud nation with strong cultural and traditional values.
Figure 8.8. Interior of the Balairong Seri at the Old Istana
Negara.(LIm, 2016)
116
New Balairung Seri
The Balairung Seri located in the new palace (figure 8.7)
too is golden hue and is influenced by vernacular Malay
architecture in a modernist approach. Unlike the old
Balairung Seri, whereby the atrium is divided into two
sanctum, the outer and the inner ones, the Balairung
Seri in the New Istana is a single undisrupted flow of
grandiose, straight directing sense of awe towards the
Singgahsana. The timber panels with intricate carvings
are substituted with ruby embroidered fabric panels.
Without columns and arches, the grand progression is
enhanced by the rows of chairs. Besides chandeliers,
fluorescence lightings are incorporated. The carved
motifs on the throne are a combination of Arabesque
designs with the incorporation of the Bunga Raya
(Hibiscus) which is the national flower of Malaysia. Very
much like the motifs carved onto the throne at the old
Palace, these motifs too are also coated in gold creating
a sense of glory. (ref)
Figure 8.9 Interior of the Balairung Seri at the New Istana
Negara (Bernama, 2012)
117
8.3 Details
Ceiling
Former Balairung Seri
Consists of repetitive panels of geometrical and floral
motifs, gilded to form a contrast against the cream white
panels. The ceiling is coffered to enhance the acoustic
circulation and heightens the elegance of the space.
New Balairung Seri
The ceiling is a relatively minimalist approach as
compared to the former Balairung Seri, without
ornamentations, but gently curves at the central axis
to points out its prominent. Only certain part with
chandeliers have covings plastered.
Figure 8.10 The coffered ceiling. (Lim, 2016)
Figure 8.11 The New Balairung Seri's ceiling. (Lim, 2016)
118
Carpet
Former Balairung Seri
The carpet design is influenced strongly by rococo
influences, with sinuous floral and elaborately decorated
whiplash motifs. From top view, the carpet is specially
designed to highlight the central percussion towards the
throne, whereby the central axis strike a contrast plain
yellow band against the intricate ruby patterns flanked by
the side.
New Balairung Seri
Similar as the former Balairung Seri, the emphasis is on
the central axis, where the King and Queen will walk
towards the SInggahsana. At this part, the carpet bears
motif of delicate four petal flora offset by plain yellow,
flanked with intricate patterns where the rows of seats
are placed.
Figure 8.12 The carpet in the former Balairung Seri.
(StatcFlick, n.d.)
Figure 8.13 The minimalistic carpet in the New Balairung
Seri. (Fadzil, 2011)
119
Lighting
Former Balairung Seri
The hall is mainly lit up by 12 crystal glass chandeliers
imported from Vienna. Apart from the reflection,
refraction of the glass created an enriched lighting
experience to the hall, warm and soft, without
compromising its grandness.
New Balairung Seri
The hall is lit up by chandeliers and indirect fluorescent
lightings. The chandeliers are made locally by craftsmen
to suit our national identity. The chandeliers carry the
metaphor of obor-obor (jellyfish) due to its nature of
adapting to the natural surrounding aptly, without losing
its integrity. (JKR, n.d.) The fluorescent lightings are hid
underneath the ceiling panels, to allow the glow to gently
highlight the grand progression of central axis.
Figure 8.14 The chandelier in Former Balairung Seri. (Lim,
2016)
Figure 8.15 The obor-obor inspired chandelier. (JKR, 2011)
120
Panels
Former Balairung Seri
The panels in the Balairung Seri is intricately crafted on
timber panels with Bunga Raya motifs, painted in gold
and silver to enhance its regal characteristic.
Current Balairung Seri
Unlike the panels in former Balairung Seri, the panels
are left untouched by paint brushes, only lacquered to
show the original colour of jati. The motifs are of Bunga
Raya as well, but is using the technique of tebuk tembus
bersilat, which bored across the timber, as if it is a piece
of embroidered lace, a challenge to the nature of wood,
which usually depict itself as a hard material, but being
sculpted into a delicate lattice.
Figure 8.16 The bunga raya inspired panels. (Lim,
2016)
Figure 8.17 The tebuk tembus bersilat timber panel.
(JKR, 2011)
121
Singgahsana
Former Istana Negara
The former singgahsana is of an upright structure, with
pelmets carrying the glorious names of Allah. The throne
seat is carved with paddy stalks to resemble riches and
abundance.
Current Istana Negara
The new istana carries the similar identity of the former
Singgahsana, but with further elaboration at certain
details. First is the glorious names of Allah is increased
to 99 to heightened its prominent. The throne seat's
paddy stalks is also carved to a higher precision to
emulate the reality, whereby the paddy stalks are crafted
to looks as if it spreads sideways. Also, there is an
addition of Quranic verse below the Coats of Arms of
Malaysia.
Figure 8.18. The Old Istana Negara Balairung Seri.
(Yeoh, 2016)
Figure 8.19 The former Singgahsana. (Bernama, 2012)
122
9.1 Structural Observations and
Recommendations
General Observation
Overall, the structural condition of the Balairung Seri is in
good quality. The overall exterior does not have obvious
defects or damage. It can be saved to say, the building is
well maintained. However, based on inspection, there
are evidence of minor damage on the exterior while they
are a severedamage on the interior part of the Balairung
Seri especially the meeting room.
9.1.1 Roof
Cement Tile Roof
The roofing is in a fair condition. There are not any
visible evidence active leaks or need for immediate
repair.
Figure 9.1 Growth of wild on the roof tiles. (Yeoh, 2016)
123
However, there a few liabilities that may affect the roof tiles in
the future. In this case, there are wild plants growing at the
side of the roof tiles (Figure 8.1). As for now, the plants are
under control and is not affecting the roof.
Although this can be a major problem in the future if the plants
are monitored regularly.
This is because uncontrollable growth of plants can lift off roof
tiles and grow through sealing sheets. This can drive rain
water to potential leaking spots.
It is advisable to get rid of the plants before it can cause any
damage, by getting rid of the plant reduces maintenance
work.
Corrugated Zinc Roof
Evidence of rusting on the corrugated roof zinc is visible due
to weather (Figure 8.2).
In order to avoid rusting, zinc roofing manufacturers
recommend the use of zinc panels that has protective coating
on their underside portion or installing a drainage layer under
the roof to ensure proper ventilation of moisture.
Figure 9.2 Rusted Roof could easily cause leakage.
(Yeoh, 2016)
124
Roof finishing
There are signs of unpleasant damp patches visible
(Figure 8.3), this leads to dampness problem such as
paint peeling, damp stains on the ceiling below. It can be
said that, the reason why this occur is because of the
improperly fitted drain pipes or blocked outlets. Water
accumulation and subsequent pent up water pressure to
improperly slop terraces may also cause this damp
patches to arise.
To avoid further problems, it is important to ensure that
the drain pipes are not clogged and there are enough
outlets for the water to drain off. Other than that, sealing
the gaps on the parapet walls using a suitable sealer
may also avoid damp patches.
Figure 9.3 Damp patches (Yeoh, 2016)
125
9.1.2 Wall
Failure of coating to properly adhere to surface causes
the plaster paint to flake off can be seen at damp corners
of the exterior walls (Figure 8.4).
Therefore, the most suitable way to fix this is to scrape
off the new paint that has not keed into the plaster and
give it a coat of 50% water, 50% paint and then two cots
of normal emulsion. This will seal the problem area and
protect it from further damage.
Dark green and black spots are noticed on the exterior
cement wall below the arch windows of the sky bridge
(Figure 8.9) and the ceiling of the porch (Figure 8.10).
The rainwater dripping from the arch windows and lead
to the growth of algae. Water stain and algae are spotted
on the ceiling of the porch. Water stain which appears at
the ceiling along the corner is caused by rainwater
leakage. Algae destroy the quality of the paint and the
appearance of the wall.
Figure 9.4 Algae on the wall of sky bridge. (Yeoh,,
2016)
Figure 9.5 Algae on the ceiling of the porch
(Yeoh, 2016)
126
The moderate to heavy rainfall cause the exterior wall to
be damp and produce a moisture environment for the
algae to grow. After exposing to the sun, the algae will
turn into black spots (Isobar, n.d.).
Hence, coating of fog line paint is advisable in order to
retard moss or algae from growing on the surfaces. In
order to avoid the growth of algae, regular chemical
cleaning maintenance is required to preserve the
appearance of the wall.
Figure 9.6 The exterior wall with algae growth.
( Yeoh, 2016)
127
9.1.3 Column
The column is located at outdoor (Figure 8.12) hence the
probability of exposure to rain is higher. The higher the
air humidity, the higher the exposure of the columns to
the moisture. When the surface exposes to moisture
repeatedly, the dampness will seep under the paint.
Eventually, the paint starts to peel when moisture gets
between the paint later and the surface underneath
(Lofgren, n.d.). The chemicals in acid rain will increase
the rate of paint peeling process.
This is not major concern but it affects the aesthetic
value of the building and is unpleasant to the eyes. Thus,
repainting is required in order to maintain aesthetic value
of the building.
Figure 9.7 Column at the south elevation. (Yeoh, 2016)
128
9.2 Finishing Observations and
Recommendations
General Observation
On the whole, the condition of the Balairung finished are
in good condition. Based on visual inspection, the overall
finishing does not have major damage but typical flaws
were observed.
9..2.1 Exterior
Ceiling
There is evidence of water leakage in ceiling (Figure
8.6). This causes a bulge in the plaster ceilings, this
often indicates a large amount of pooled water.
There are possibilities of significant amount of water
damage and running the risk of mold growth.
The source of leak has to be eliminated to repair the
water damaged ceiling. In order to fix the problem, drying
the areas above and below the water contamination is
recommended to prevent moisture retention.
Thus, it is advisable to contact a certified water damage
professional that has years of experience dealing with
not only water damage repair but also mold; to create a
full assessment of the extent of damage.
Figure 9.8 Water leakage in ceiling. (Yeoh, 2016)
129
Window frames
The wooden window frame is rotten and the paint
coating on the window frame has peeled off (Figure
8.11). The planter boxes are attached to the windows.
The condition of the soil in the planter box is always
moist due to the climate of our country. When water
contacts to an unprotected wood surface for a long
period, the wood begins to deteriorate (Water Damage
Defense, 2013.).
Therefore, multiple coats of waterproof wood sealer
paintings are required to prevent the wooden window
frame from rotting as it stops the absorption of moisture
by the wood.
Figure 8.9 Rotten window frame on the East elevation (Yeoh, 2016)
Figure 9.9 Damaged window frame. (Yeoh, 2016)
130
Ceramic tiles
The ceramic tiles on the exterior floor are buckled up
(Figure 8.13). This may cause by the thermal shock.
Thermal shock occurs when the tiles are heated for a
few hours and a sudden storm cools down the surface
with a large amount of water (Anonymous, 2014.).
Another example is when the sun only heats a small
portion of the floor but the rest is colder (Anonymous,
2014). These two situations may cause heaving of the
floor tiles.
In order to fix this and avoid further problems in the
future, it is important to remove the tiles and retile the
Figure 9.10 Exterior ceramic tiles. (Yeoh, 2016)
131
Electrical Conduits
The paint of the PVC electrical conduits covering the
electrical wires are peeling off (Figure 8.5). This does not
give a major concern but it affects the aesthetic of the
building and is unpleasant to the eyes.
Repainting is required in order to maintain aesthetic
value of the building.
Figure 9.11 Peeling off paint. (Yeoh, 2016)
132
9.2.2 Interior
Carpet
It is used to cover the wooden flooring of Balairung to
ensure the wooden flooring is in good condition (Figure
8.14). Carpet with floral motif which enhances aesthetic
beauty of the Balairung. Big Balairung with high ceiling
has an echo problem, carpet on hard floor soften the
surface and help to absorb reverberating noise in the
Balairung (Kelsey, n.d.).
Embroidered Fabric
The fabric used in the Balairung (Figure 8.15) and the
Queen suite (Figure 8.16) are well maintained.
Figure 9.12 The interior of Balairung Seri with plush
carpet. (Yeoh, 2016)
Figure 9.13 The panels with embroidered fabric. (Yeoh,
2016)
133
Wallpapers
Wallpapers are to protect the walls from damaging,
cracking and other factors than will decrease the
durability of the walls (Pmac, 2015.). The fabric
wallpapers are in good condition as the surrounding is
dry and cool. The Balairung and the Queen suite are fully
enclosed hence the probability of wallpaper exposing to
sunlight is lower. This helps to keep the wallpaper in
good condition as it will not fade (Natalie, 2014.).
Paint
Paint cracks in visible on several parts of the interior
walls and columns (Figure 8.7). This is due to lack of
paint coat finishing.
In order to avoid the paint from cracking, sufficient
amount of paint finish has to thoroughly coated. Regular
maintenance is required to preserve the paint.
Figure 9.14 Interior wall of Personal Dining Room in
Queen Suite (Yeoh, 2016)
Figure 9.15 Paint cracks at the suites. (Yeoh, 2016)
134
Marble
The marble walling and flooring tiles in the queen‟s
bathroom (Figure 8.17) and the king‟s bathroom (Figure
8.18) are in good condition. The finishing in the bathroom
is different because the bathroom is more humid
compared with other spaces in the building. Marble is
selected as it is resistant to moisture (Anonymous,
2016).
As a conclusion, the finishing in the interior of the
building is well maintained compared to the exterior of
the building because the humidity, temperature and the
probability of exposure to light in the interior is more
stable than the exterior. A consistent environment is the
key point of keeping it in a good condition.
Figure 9.17 King’s bathroom (Yeoh, 2016)
Figure 9.16 Queen’s bathroom (Yeoh, 2016)
135
Wood Paneling
Signs of severe damage from dampness are visible at one
part of the meeting room (Figure 8.8) due to water leakage.
This causes a panel of the wood to decay. The dampness
travels all the way from the ceiling to the carpet floor, which it
affects the aesthetic value. Several attempts of repair has
been undertaken, however the leakage still occur.
Figure 9.18 Wood decay (Yeoh, 2016)
136
9.3 Limitations in Inspections
Limitation of Exterior Inspection
 Roof inspection may be limited by access,
condition, weather, or other safety concerns.
 Evidence of prior leaks may be disguised by
interior finishes.
 The estimation of remaining roof life are
approximations only and do not preclude the
possibility of leakage. Leakage candevelop at any
time and may depend on rain intensity, wind
direction, and other factors.
Limitation of Interior Inspection
 Furniture, storage, appliances or wall hangings
are not moved to permit inspection and may block
defects.
 Carpeting, window treatments, central vacuum
systems, building appliances, recreational
facilities, paint, wallpaper, and other finish
treatments are not inspected.
Summary of findings
The current condition of the overall Balairungis in a good
condition. Despite that, there are several maintenance work
that has to done on the Balairong to keep the building in its
upmost condition. This is important because the Balairungis a
symbol of greatness that shows the throne of Malaysia and
used for his Majesty, the Yang Di-PertuanAgong, and her
Majesty, the Raja PermaisuriAgong to hold official
ceremonies. These include the taking of the royal pledge,
installation ceremony of a new elected king and appointments
for new prime ministers. The gallery is also an area to accept
foreign diplomatic appointments and even a banquet hall.
137
9.3 Historic Preservations And
Conservations
The preservation method used and the problem each
element has:
A) Building materials
(i) Wood
There are two approaches in preserving wood structures.
The first is through pesticides that uses both insecticides
and fungicides which would control pest damaged to the
wood. The pesticides comes in three different types
which are dry or wetted powders and gaseous spray.
The second approach is to apply preservatives to the
wood before or during construction. This would prevent
the troubles of attacking the pest after they have become
a problem. There are variety of inorganic and organic
products that have been developed and used in various
building applications.
When there‟s damage done, if not severe, reinforcement
may be needed to support the damaged area in order to
retain the structural balance. If severe, replication or a
replacement might be needed.
(ii) Masonry
Many masonry products have decay mechanism which
was due to their characteristics of being moisture
absorption product. Masonry is a porous material that
has the tendency to absorb water, thus more
troublesome than preserving wood, as Robert A. Young
said in his book. Thus to preserve historic masonry,
"Historic buildings provide the authenticity, the
credibility, the sense of community, the sense of
history that bind in a fast – moving, 24/7 ever –
changing world. They ground us. They provide a
sense of self, a sense of identity in this creative age
that we are moving into"
- Richard Florida
138
coatings were applied. The factor that caused a debate
was of the recognition of differences between water
repellant and waterproof coatings as masonry products
were required to allow moisture vapor in the masonry to
escape. When moisture vapor are unable to escape, the
vapor may move to the interior of the building and
damage the interior finishes. There are other methods
besides coatings, which are consolidants, expoxies and
infill repairs method. If the deterioration is severe,
replication or a replacement may be needed in order to
prevent it from affecting the other structures.
(iii) Concrete
Similarly to the masonry product, concrete is also a
porous material. Thus the methods of preserving
concrete would be the same as those for the masonry
products.
(iv) Metal
Metals will rust as they oxidized into the air. Thus to
preserve metal in historic buildings, stabilization is used.
This is as the sources of decay are identified, the
damaged metal may be stabilized with nominal repairs.
Other than that, moisture control should be applicable in
order to prevent the air from being moisture and react to
the metal. If the rust done to the metal is severe,
replication or a replacement might be needed.
B) Building Fabric :
(i) Roofing
A well-qualified contractor is required in order to inspect
and repair the roof especially historic roof as the systems
varies significantly from modern construction practices.
Covering the roof with new ones by attaching the new
cladding directly over the existing ones but this is only
possible for only wood and asphalt shingle roofs. Other
than that, replacing the damaged roof tiles with one of
the similar material.
139
(ii) Wall Cladding
The typical problem the walls would usually face would
be moisture penetration, exposed to the sunlight, heat
and wind. Annual or seasonal maintenance are required
to catch and eliminate the decay mechanisms before
they become substantial. Repairs made can be applied
directly similarly to vertical cladding products.
(iii) Windows
Along with the problems associated with woods and
metals, windows experience problems such as structural
failures, missing features and callous replacement. Many
deteriorated windows can have their sashes, frames or
casement repaired or replaced.
C) Building ornaments &finishes :
(i) Floors
Floors usually have moisture related problems and
sometimes even mechanical failures and missing
material element. Preserving using harsh cleaning
methods or using ultraviolet lights is advisably avoided
as harsh cleaning will damage further the floor and
ultraviolet lights will cause a change of colour or the
material in the floor. Thus to preserve, mild cleaning is
used and then sealed in to avoid decaying in materials.
(ii) Walls & Ceilings –
The problem that usually walls and ceilings has are
usually fire, vandalism, moisture, natural disasters,
mechanical failures and material losses.
Limiting the exposure of ultraviolet light and enable
annual maintenance or regular checkups on the
materials are some of the methods that can be used for
preserving them. To preserve surfaces with decorative
ornamental features, avoid aggressive or harsh cleaning.
140
9.4 Improvement suggestions on
Design
Roof
In this building, several problems are aroused due to
poor construction. One of it is identified at the roof.In
general, eave are the edges of the roof overhang the
face of a wall, protecting the underlying structure. In this
building, the length of the projected eaves are about 1
metre long, which is odd as compared to the other roof
eave in Malaysian context. Moisture is the one of the
biggest problem that cause failure in construction. When
it rains, the rainwater flow from the higher end to the
lower on pitched roof. The disadvantages of having the
long roof eave is that it blocks the directexposure of
sunlight, results in high moisture and promote growth of
fungus at the concrete gutter below the eave.
Figure 9.19 Short section cut of Balairung Seri. (Neoh,
2016)
141
Floor Planning
Another problem created are due to poor planning are
the position of the door in dressing room 2 on the first
floor. As the door connected to the water closet from the
dressing room is placed in the middle, this affects the
circulation flow and show poor space planning. This is
because the user will focus on walking towards the door
causing the space in the centre to be wasted and thus
making the circulation flow worse when furniture are
placed in. Practically, placing the door on the left or right
near the corner would be a far by better option.
Figure 9.20 Floor Plan of dressing room and water
closet at first floor. (Tan, 2016)
142
The direct placement of the spiral staircase and M&E
room at the side of Balairung Seri somehow truncated
the grand symmetrical design of the hall. The hold
which holds the most prominent role of the entire
complex shall be designed in the most delicate rigor.
However, the placements of these structures reduce
the area of the outer sanctum of the Balairung Seri,
disrupted the symmetry that depicts order, harmony
and balance. The design should incorporate the ideal
placement of these elements in an early stage, to avoid
being misunderstood as a random placement due to
disrupted schedule and unplanned prior consideration.
The location of two unknown angled room at the side
of the Balairung Seri also holds a mystery in their role.
Now, the room is entirely sealed out from visitors and are
abandoned. We found that attention should be placed to
these spaces.
Figure 9.21 The asymmetrical plan of the throne hall.
(Lim, 2016)
143
Staircase
Besides, problem also arise due to poor design at the
grille staircase, creating trouble when the user unlock the
gate from the inside. A simple way to solve this would be
adding a landing prior to the entrance of the grille stairs,
giving the user a larger and more comfortable area while
opening the gate. Consider about the safety precaution,
the gap between the staircases and the wall is another
problem. By chance, tragedy might happen when one
accidentally step into the gap hurt themselves.
Figure Grille staircase in the exterior. (Foo, 2016)
Figure Gap between the staircase and the wall (Foo, 2016)
144
10.1 Role of Balairung Seri in
Identifying the true Malaysian
Architecture
As we traverse from the main building to the annex
building, the architectural style transforms from Palladian
and British Colonial style to a different language. Source
it back to the 1980s when the annex building was built,
our country was still considered as a young nation, eager
to join the world and prove herself to be equally
competitive. In a stage of searching a new identity, the
design is devoid of traces of the past which stirred any
memories of the colonization from occupants before. In
this quest of finding a true self, architecture becomes the
most proficient language. Take the example of the
world's icon, we tends to relate building as a country's
symbol. For instance, Eiffel Tower of Paris, the Burj Al
Arab of Dubai, the Marina Bay Sands of Singapore and
etc. As a nation, we hope to be recognized but the
methodology is crucial.
In the epoch of post-independent Malaysia, expatriates,
cultivated from the West brought their ideology back to
our nation. During the period, international style led by
Le Corbusier was widely favored due to its modernistic
approach of letting go the past and embracing new hope,
celebrating the monumentality of material and form,
manifested the spirit of time and space brutally and
confidently, without compromising the art of humanistic
consideration, a machine fit for man. At the time,
whereby most of the nations were recovering from the
agonies and calamities that war brought forth, a new
gush of architectural Zeitgeist is welcomed, as their
desire for a better tomorrow. All that are evocative of the
hegemony or dominion for any particular nation or
civilization, which generally leads to the spark of
colonization, Imperialism and finally the World Wars are
suppressed. As Wright stated "To emulate architecture
145
that came from an aristocratic or autocratic regime of the
past was not a true attempt at portraying the new ideals
of democracy which gave the power of governance to
the people and not to the elite". Thus, International style
became the pinnacle of 20th Century architecture. And
this style is incorporated into Malaysia's context, largely
inspired by the Corbusier's Chandigarh Capitol in India
due to the similarity of climatic and historical context.
Figure 10.1. Chandigarh Capitol by Le Corbusier. (Canadian Centre
of Architecture, 1956)
In Malaysia, International Style was adapted and
assimilated to form as what local architecture critic, Mr
Mohamad Rashid would put it as "Machine
Regionalism", which means a building as a machine that
would sieve the climate through it (Rashid, 2005). The
Balairung Annex Building shows significant influences of
this style. Through the usage of mass concrete in
brutalist form of a reduced geometry, "egg crate" louvers
and louvered shade and openings, the signature of this
style is clearly depicted. This particular language works
well in our country, bestowed with sunshine all year
round, which light is harnessed and tamed. The louvers
created a significant reduction in heat gain and direct
daylight for the interior, also enriching the monotonous
volumes of mass concrete with the play of shadow.
However, this style is not a positive search of national
identity, instead is more of a passive design shelter in
response to the local climate, as Rashid declared.
Rather than concocting our national's identity, it is more
of a direct rejection of any revivalism that we are aware
146
of. The spirit of the place is rooted, but the spirit of the
time is yet to be clarified.
However, the interior of the building is contrary to its
expressionism of the exterior. The Balairung Seri at the
ground floor is an amalgam of traditional Malay
Revivalism with Eclectism, with intricately gilded timber
carvings panels, rows of decorative columns and arched
windows adorned by Islamic geometry. On the first floor,
where the Victorian influenced Majesty's suite is located,
it is clear that the lavishness of Victorian style is still
considered the most favored way to express the
opulence of Royalty at the time. Panels with embroidered
fabrics, plastered ceilings and fresco adorned the space.
There is no trace of Vernacular identity in the suite,
instead it is pure the continuation from the main
building's interior design.
From these, we discovered that the true identity of
Malaysian architecture is not yet completely embodied in
this Balairung Seri building. It can be understood as our
nation is still in a considerably young stage in terms of
post-merdeka architecture. A hold on International style
as a starting point is a good venture, but perhaps there
are more yet to be discovered. While following the
stream of International style, we should learn to extract
the very essential of being Malaysia. Not of an inclination
towards a specific dominated groups, nor the oppression
of our roots and definitely not of the blindfold of
economic or political pressure. It is not of something
utterly rhetoric in a grand scale, but in a very humble
way, embraced by the whole nation, whereby it touches
the life of every Malaysian and whips resonance among
you and me. By doing so, we share common memories
and this strengthens the integration among people
through architecture.
It is fortunate that Kisho Kurokawa came into the scene
and set forth the future path of modernistic
expressionism (Rashid, 2005). The Kuala Lumpur
International Airport is a good instance. Without a
specific reference to any ethnics or political will, the
147
building is full of metaphors, that allows the people to
freely relate it based on our common ground of shared
cultures. Some may refer the gently curving ceiling as
the Wau, some may refer it as the billowing sails and so
on. The form is minimal and yet so profound in its
message, perhaps in a way of "Less is More". It serves
as the blank space for the people to fill in their ideology
and imagination, to make it a true Malaysian
architecture. As architecture should function as a canvas
for the people, gently recedes to bring out the foremost
purpose of architecture, a space for human interaction.
To conclude, we are still in the journey of finding our
national identity in architecture. The Balairung Seri
annex building served as a stepping stone, to catapult
our architecture towards a higher range. By bearing
concern towards our people's shared roots and dreams,
we shall be able to build what which is known as a true
Malaysian Architecture.
Figure 10.2 The KLIA by Kisho Kurokawa. (Backpacking
Malaysia, n.d.)
148
10.2 Aspiration
As final stage of this report we take a look at the status
of the Royal Museum as a tourist attraction and the
potential for it to become a centerpiece of the experience
of visiting Kuala Lumpur.
Status quo of the Muzium Diraja as tourist attraction
With the opening of the former Istana Negara as Royal
Museum, it has become publicly accessible. A stop has
been added to the Kuala Lumpur Hop-on Hop-off bus
route, making it easy for tourists to include a visit to the
old palace in their sightseeing.
Access for tourists and local visitors by other
transportation means is not as straightforward as the
main entrance lies off a major highway and thus is only
accessible when travelling from one direction on the
highway. An option to reach the attraction by foot from
the Tun Sambanthan Monorail and via a pedestrian
bridge over the Klang River and the Federal Highway
(Jalan Syed Putra) is less well known as the directions
are not communicated neither in published material
including maps nor via signboards along the route.
Figure 10.3 A map of Kuala Lumpur’s major tourist attractions (Mari
mari, 2014)
149
Sufficient parking area is available for visitors arriving via
taxis, cars or tour busses. The most interesting parts of
the palace are now accessible by the public and many
visitors, local as well as international, appear to take
great interest in taking a glimpse into the regal life of
Malaysia‟s monarch and the related history. However,
from observation, it appears that visitor numbers are
relatively low.
Aspiration for the future of the building
To unlock the full potential of the Istana Negara, the
questions to pursue should be: What would make a visit
to the Istana Negara and the Royal Museum a central
experience of a visit to Kuala Lumpur at par with the
other local “super attractions” such as the KLCC Twin
towers, and how can the full potential could be
unlocked?
How palaces and their gardens have become major
attractions in the other cities is evident from a quick
overview of case studies:
Palaces in the United Kingdom: Many of the palaces and
royal gardens in the United Kingdom and London are
accessible to the public. Kensington Gardens, which is
one of the Royal Parks of London, is accessible to the
public and has become not only an integral part to
tourists‟ visit but has become a centre of public urban
life. Picnics, concerts and sport events are held in the
gardens. Other palaces or former palaces that have
opened their gardens to their citizens and visitors include
the Imperial Palace in Tokyo and Hofburg in Vienna
Figure 10.4Picnic in Keningston Garden (Caroline, 2013)
150
Other former royal residences are nowadays utilised for
hospitality services such as dining and accommodation.
For instance, The Taj Falaknuma Palace in Hyderabad,
India is famous for boosting the world‟s longest dining
table. A number of other palaces around the world have
been converted into hotels to varying degrees. Some are
partly accessible to the public and partly private while
others have been fully converted into hotels.
The Old Istana Negara in the context of Kuala
Lumpur’s urban development
In the current city topography the palace lies a little “off-
center”. However, a closer look at the planned urban
development in Kuala Lumpur shows that the location of
the palace will become more central to the larger
metropolitan area. This is especially due to major
developments happening and planned within the vicinity
of a few kilometer from the palace. For instance, Bandar
Malaysia to the south west of the palace, planned
Menara Warisan project in the vicinity of the Merdeka
Stadium, growth around the KL Sentral area, River of life
project, Petaling Jaya growing into a sister city to the
south of Kuala Lumpur etc. It is believed that these
development will undoubtedly raise the popularity of Old
Istana Negara and transform this site into a more
welcoming tourist spot. River of Life project for example,
it aims to transform the Klang River into a vibrant and
bustling waterfront, making Kuala Lumpur more
Options Enhanced
attractiveness via
Local
suitability
Kensington
Gardens
Concerts Yes
Imperial
Palace, Tokyo
Public gardens Yes
Government
House,
Sydney
Royal Botanic gardens Yes
Figure 10.3. Table of comparison among Royal
Gardens. ( Rosien, 2016)
151
appealing with green surroundings and walkways.
(segaran, 2015)
Potential for areas of the Balairung Seri wing, which
are currently not used:
A significant portion of the Balairung wing is not
accessible to the public. Most notably, this includes the
Banquet kitchen on the southern end of the building as
well as the areas related to banqueting on the first floor.
While this certainly requires further analysis there seem
some general options to unlock further attraction
potential by utilizing these areas without major changes.
Option A: Remove the remaining kitchen equipment and
refurbish (paint, flooring) the areas on the southern end
of the balairung wing. The available space could be
utilized for exhibitions such as art, photography,
travelling international exhibitions, showcases from other
museums under the Department of Museums or talks /
screenings.
Option B: Reinstate the kitchen and position the
bailarung hall as space for festive dinners or even private
“dine like the royals” events.
Figure 10.5 Banquet set up in the garden (Debbie, 2015)
152
Other potential to make the Istana and its premises a
more prominent spot in Kuala Lumpur would be to open
the gardens for walks, visits, picnics, educational tours
and/or smaller events such as concerts etc. As green
lungs are becoming more important in the city to change
the urban environment, the green landscape next to the
long stretch drive way in front of the old Istana Negara
becomes one of the potential tourist attraction. It can be
transform into public gathering area or garden for public
urban life by the citizens.
153
Reference List
Allen, R. (n.d) American Meadows: All About Irises.
Retrieved from
http://www.americanmeadows.com/about-irises
Allied Scope Sdn. Bhd. (2013) Cold-Formed Metal
Framing. Retrieved from http://www.gfs-
web.com/2blueprint/allied-scope-sdn-bhd-website-
under-construction/
Arkib Negara Malaysia. (2015). PenjawatAwam: Istana
Iskandariah. Retrieved from
http://www.arkib.gov.my/web/guest/istana-
iskandariah
Art of Mourning. (2011). Know Your Trees: Symbolism,
The Cypress. Retrieved from
http://artofmourning.com/2011/09/07/know-your-
trees-symbolism-the-cypress/
AsiaTravel. (n.d.) Travel Information of Malaysia.
Retrieved from http://asiatravel.com/malinfo.html
AustralianPolitics. (2016). Constitutional Monarchy -
Definition AustralianPolitics.com. Retrieved from
http://australianpolitics.com/democracy-and-
politics/key-terms/constitutional-monarchy
Bensley. (n.d.) Photo Library: Malaysia: The
RoyalPalace. Retrieved from
http://www.bensley.com/
Bouaissa, M. (2013). The Crucial Role Of Geometry In
Islamic Art. Al Arte Magazine. Retrieved from
http://www.alartemag.be/en/en-art/the-crucial-role-
of-geometry-in-islamic-art/
Caroline, R. (2013). The Best Places to Picnic in London.
Retrieved from
http://blog.visitlondon.com/2013/05/the-best-
places-to-picnic-in-london/
154
Chandeliers. (2011). A Short History. Retrieved from
http://www.adrianalan.com/public/Chandeliers%20
-%20A%20Short%20History.pdf
Chen, V. F., & Chin, K. Y. (1995). Kuala Lumpur: A
sketchbook. Singapore: Archipelago Press.
Chin,K.T., Chen, V.F., John, M.G. (2003). Landmarks of
Selangor. Kuala Lumpur, Malaysia: Jugra.
City Photo. (2016). Kuala Lumpur, Malaysia.
http://www.city- photos.org/photo/35501.html
Daily Press. (1989) Garden Dimensions: Islamic
Gardens. Retrieved from
http://articles.dailypress.com/1989-08-
27/features/8908250202_1_future-garden-
famous-gardens-color-and-fragrance
Elizabeth, C. (2007). The 10th
Anniversary of TheMubin
Sheppard Memorial Prize. Kuala Lumpur,
Malaysia: BadanWarisan Malaysia.
Emily. (2014). MuziumDiraja - Istana Negara Lama.
Retrieved from http://www.emily2u.com/royal-
museum-muzium-diraja-istana-negara-lama/
Expat Go. (2015). The River Of Love Project in Kuala
Lumpur. Retrieved from
http://www.expatgo.com/my/2015/05/14/the-river-
of-life-project-in-kuala-lumpur/
Fauziah, A.R. (2010). BangunanBersejarah Di Kuala
Lumpur dan Selangor. Kuala Lumpur, Malaysia:
AzzamMaju
Frangipanis. (n.d.) About Frangipanis. Retrieved from
http://www.allthingsfrangipani.com/frangipanis.htm
l
George J.J. (n.d.) Session – II Indo Saracenic
Architecture in Channai. Retrieved from
http://www.cmdachennai.gov.in/pdfs/seminar_heri
tage_buildings/Indo_Saracenic_Architecture_in_C
hennai.pdf
155
Ghani, R. (2012). Unique constitutional monarchy in
Malaysia‟s parliamentary democracy. Retrieved
fromhttp://www.theborneopost.com/2012/04/07/un
ique -constitutional-monarchy-in-malaysias-
parliamentary-democracy-new/#ixzz413kPmHIx
Hafiz, W. (2012). Malaysian New Istana Negara in Jalan
Duta. Retrieved from
http://www.wanhafiz.com/2012/03/malaysian-new-
istana-negara-in-jalan.html
Hilmi, W, H. (2014). Islamic Architecture. Retrieved from
http://wanhaziqhilmi-
islamicarchitecture.blogspot.my/
History of Yap Ah Loy. (n.d.). A Description of Yap Ah
Loy. Retrieved from
http://yapahloy.tripod.com/a_description_of_yap_
ah_loy.htm
Imam Reza. (n.d.) Islamic Architecture. Retrieved from
http://www.imamreza.net/eng/imamreza.php?id=4
204
Insight Guides. (n.d.) Malaysia History. Retrieved from
https://www.insightguides.com/destinations/asia-
pacific/malaysia/historical-highlights
Istana Negara Kuala Lumpur. (2016). Istana Negara
Jalan Duta. Retrieved from
http://www.istananegara.gov.my/index.php?option
=com_content&view=article&id=94&Itemid=621
Izwan, A. (2015) Istana Rasmi Sultan Perak : Istana
Iskandariah, Kuala Kangsar. Retrieved from
http://warisanpermaisuri.blogspot.my/2015/08/ista
na-iskandariah-kuala-kangsar.html
Izzati, G. (2014) Apa Yang Ada Di MuziumDiraja Kuala
Lumpur. Retrieved from
http://www.kisahtatie.com/2014/10/apa-yang-ada-
di-muzium-diraja-kuala.html
156
Jalil. F. (n.d.) Role Of Monarchy and Traditional Rulers in
Malaysia. Retrieved from
http://www.academia.edu/1021933/ROLE_OF_M
ONARCHY_AND_TRADITIONAL_RULERS_IN_
MALAYSIA
James. (2009). Through the oculus: Water in Islamic
Architecture. Retrieved from
http://throughtheoculus.blogspot.my/2009/03/wate
r-in-islamic-architecture.html
Kayrolldin. (2015). MuziumDiraja. Retrieved from
http://kayrolldin.blogspot.my/2015/01/muzium-
diraja-istana-negara-lama.html
Kdymm Sultan Terengganu (n.d.) Istana-istanaNegeri
Terengganu: Istana Maziah. Retrieved from
http://www.istana.terengganu.gov.my/istana_mazi
ah.php
Ken, Y. (1992) The Architecture of Malaysia.
Amsterdam, The Netherlands: Pepin Van Roojen.
KuenCheng High School. (n.d.) About Us. Retrieved
from http://www.kuencheng.edu.my/kchsen/about-
us/
LawTeacher. (2016). The Malaysian Constitutional
Monarchy System | Law Teacher.Retrieved from
http://www.lawteacher.net/free-law-
essays/administrative-law/the-malaysian-
constitutional-monarchy-system-administrative-
law-essay.php
Life College. (n.d.) About Malaysia: General Information
About Malaysia. Retrieved from
http://www.life.edu.my/about-malaysia/
Lim. (2009). Panoramic Kuala Lumpur 1884. Retrieved
from
https://limthianleong.wordpress.com/2009/07/05/p
anoramic-kuala-lumpur-1884/
Ling. (2015) Istana Negara Report. Retrieved from
https://issuu.com/x3xiaozhu/docs/real_full_report
157
Malaysian‟s Open Kuala Lumpur. (2012). An Introduction
to Kuala Lumpur. Retrieved from
http://www.malaysianopentennis.com/2012/intro.p
hp
MitLibraries. (n.d.) Dome: Istana Iskandariah Kuala
Kangsar. Retrieved from
https://dome.mit.edu/handle/1721.3/133567
Mohamad, T.M.R. (2005) Malaysian Architecture: Crisis
Within. Kuala Lumpur, Malaysia: Utusan
Moore, W., & Saleh, M. N. (2003). Malaysia: Portrait of a
nation. Singapore: Periplus.
Murthi, R, S. (2013). Old Photos of Kuala Lumpur.
Retrieved from
http://www.rsmurthi.com/oldkualalumpurphotos1.h
tml
Names Of Flowers. (2015) The Hibiscus Flower.
Retrieved from
http://www.namesofflowers.net/hibiscus.html
Omi, H.H.S., Haji, S.H.I., Haji, Z. H. I. (2012) Seri
PadukaBaginda Yang DipertuanAgongPayung
Negara. Putrajaya, Malaysia: JabatanPenerangan
Malaysia
PejabatPenyimpanMohorBesar Raja-raja Malaysia.
(2010). FungsiPejabatPenyimpanMohorBesar
Raja-raja Malaysia. Retrieved from
http://www.majlisraja-
raja.gov.my/index.php/bm/maklumat-jabatan/8-
kategori/18#section=p4&Itemid=244
Sabariah, A., Norzehan, M.Y. (2006)
MercuTandadanBangunanBersejarah. Selangor,
Malaysia: Sejati.
Safwan, S. (2010). SejarahBesut, NegeriBerajasatu
masa lalu. Retrieved from
http://alamiterengganu.blogspot.my/2010/05/sejar
ah-besut-negeri-beraja-satu-masa.html
158
Saga, M. (2015). MonarkiDiraja: Singgahsana Malaysia.
Retrieved from
http://monarkidiraja.blogspot.my/2015/06/singgah
sana-merupakan-tempat-duduk-bagi.html
Saoud, R. (n.d.) Muslim Heritage: The arch that never
sleeps. Retrieved from
http://www.muslimheritage.com/article/arch-never-
sleeps
Sapiee, R. (2008). Malay Olden Art. Retrieved from
http://artmelayu.blogspot.my/2008/08/istana-lama-
old-palace-of-seri-menanti
Sepul. (2014) Skyscaper City. Retrieved from
http://www.skyscrapercity.com/showthread.php?p
=128866142
Shafa, F. (2012). DetikTravel: RibutSoalBubu,
CekDuluNih Istana Selangor. Retrieved from
http://travel.detik.com/read/2012/05/21/123213/19
20707/1025/ribut-soal-bubu-cek-dulu-nih-istana-
selangor
Sonia, R,C. (2016). Flickr: Hibiscus. Retrieved from
https://www.flickr.com/photos/134660554@N02/2
5089553665/
Stars and Sickles. (n.d.). An Alternative Cold War -
Alternate History Discussion Board. Retrieved
from
http://www.alternatehistory.com/discussion/showt
hread.php?t=280530
Tengku, S. (2013) DuaKubahDikiridanKananSingahsana
Di Balairong Seri Istana Syarqiyyah. Retrieved
from http://tengkusyah.blogspot.my/2013/07/blog-
post.html
The Alice Smith School. (n.d.) About Us. Retrieved from
http://www.alice-smith.edu.my/367/about-
us/history
159
The Malaysian Insider. (2012). History Contradicts
Minister‟s Arguments That Malaysia Is Not
Secular. Retrieved from
http://www.themalaysianinsider.com/malaysia/arti
cle/history-contradicts-ministers-arguments-that-
malaysia-is-not-secular
The Telegraph. (n.d.) Royal Places You Can Visit.
Retrieved from
http://www.telegraph.co.uk/luxury/travel/82613/roy
al-palaces-you-can-visit.html
The UN Refugee Agency Malaysia. (2011). Office of the
United Nations High Commissioner for Refugees.
Retrieved from
http://www.unhcr.org.my/About_Us-@-
About_Us.aspx
Utusan Online. (2013) MuziumDiraja Akan
DibukaUmumFebruariIni. Retrieve from
http://ww1.utusan.com.my/utusan/Kota/20130123/
wk_04/Muzium-Diraja-akan-dibuka-kepada-
umum-Februari-ini
WangsaMahkota Selangor. (2010). BUKIT JUGRA
PUSAT PEMERINTAHAN SULTAN ABD SAMAD.
Retrieved from
https://wangsamahkota.wordpress.com/2010/09/2
5/bukit-jugra-pusat-pemerintahan-sultan-abd-
samad/
Wonder Malaysia. (n.d.) History of Kuala Lumpur.
Retrieved from
http://www.wonderfulmalaysia.com/kuala-lumpur-
history.htm
WyeYim. (2013). Nomadtravel‟s Ramblings: Kuala
Lumpur losing its Heritage & Icons of
Independence. Retrieved from
https://nomadtravel.wordpress.com/2013/03/10/ku
ala-lumpur-losing-heritage/
160
Glossary
Annex – Part of a building that is an extension of a main
building providing additional space or accommodation.
Amalgam - A mixture/combination.
Ambience – The atmosphere or character of a space.
Apex – The highest point of something.
Atrium – A rectangular open-roofed entrance hall or
central court in an ancient Roman house.
Asylum – A place of refuge.
Arches – An upward curved construction that extends
across an opening.
Arabesque - A form of Arabic or Moorish decoration
consisting of intertwined flowing patterns.
Aurah – a term used within Islam which symbolizes the
intimate parts of the body, for both men and women,
which must be covered with clothing.
Axis - An imaginary straight line that divides an object
into symmetrical halves.
Base – The bottom supporting member of a
column/pilaster.
Buckled – To bulge or curve under excessive strain.
Capital – The topmost member of a column/pilaster.
Carving – A type of design produced by cutting/shaping
a solid material.
Circulation - Pathways created through a floor plan of a
building that help contribute to how one experiences the
architecture of a building.
Cladding - a protective or insulating layer fixed on the
outer surface of a structure.
Colonnade – A long row of columns joined by a
horizontal continuous lintel.
Colonial - An architectural style from a mother country
that has been incorporated into buildings belonging to
colonies of that particular country.
Columns - Structural elements of a building that transmit
the load of the structure above to other structural
elements below them.
161
Coronations - Ceremonies in which the crowning of a
King, Queen or other sovereign takes place.
Castellated - a building made to look like a castle by
having towers and battlements.
Constitutional – Relating to an established set of
principles governing a nation.
Core - The central most important part of something.
Complex – A group of buildings/facilities that are similar
located on the same site.
Dome – A rounded vault forming the roof of a building.
Elevation - The external face of a building or structure
drawn to scale.
Emblem – A symbolic/ distinctive object of a nation,
organization or family.
Façade - Any face of a building given special
architectural treatment.
Foliage – Plant/tree leaves considered as a group.
Foundation - An element that connects an architectural
structure to the ground thereby transferring all loads from
the structure to the ground.
Gilded – Covered with a thin layer of gold.
Haya – An idea of tranquility, decency and
unobtrusiveness.
Hardscape - All man-made fixtures that are part of a
planned outdoor area.
Imperialism – The policy by which a country increases its
power by gaining control of other parts of the world.
Iqtisad – The balance in architecture between functional
and spiritual elements.
Lacquer – A type of varnish used as a protective coating
for materials like wood.
Louvers - Each of a set of angled slats hung at regular
intervals in openings to allow air or light to pass through.
Lounge – A public room used for reclining.
Linear – A one dimension element related to a straight
line.
Mezzanine - A raised platform that is independent of a
building structure and is supported by columns.
Monarchy – A governmental system in which supreme
power is nominally held by a monarch.
162
Mold – A growth of fungus on a damp surface of a
structure.
Oblique – Having a slanting or sloping direction.
Ornate – Elaborated with decorative details.
Palladian style – A style of architecture inspired by the
designs of Venetian Architect Andrea Palladio.
Pelmet – A decorative hangings or board fixed above a
window to conceal the curtain rail.
Pediment – An architectural element consisting of a
gable placed over a horizontal continuous lintel that is
supported by columns.
Pillar – A vertical support of a column used for
decoration.
Pilaster - A rectangular column that projects partially
from the wall to which it is attached; used more as a
decorative element as opposed to a structural element.
Plasterboard – A building material made out of large
sheets of plaster covered with thick paper used for
making walls and ceilings.
Prefabricated - Parts manufactured in advance and
ready to be put together, assembled at a factory.
Rhythmic – Of having a regular repeated pattern of
sounds or movements using a tempo.
Riser - A vertical component of a step.
Regal – Something magnificent or dignified, fit for a
monarch.
Sanctum - A sacred place.
Softscape - Refers to the living elements of a landscape.
Saracenic – An Islamic architecture consists of mosques
and is characterized by decorated surfaces, bulbous
domes and multifoil arches.
Singgahsana - The throne.
Sovereignty – The quality of having independent
authority over a geographic area.
Symmetrical – An element made up around an axis
showing exactly similar parts facing each other.
Tenon and mortise – A strong joint made by members
that consists of a square hole (mortise) and another
consisting of shoulders that seat when connected (tenon).
163
Tebuk tembus bersilat – Traditional wood carving art.
Tread – Are the top baseboards onto which one step on.
Takhta - A ceremonial chair used by a ruler, especially a
king or a queen.
Vernacular – Reflection/indication of local traditions.
Victorian style - A series of architectural revival styles
that was prominent during the reign of Queen Victoria.
Whiplash – A popular design motif of the Art Nouveau
Style consisting of a series of elliptically shaped reverse
curves.
Zeitgeist – A spirit or mood of a particular period of
history as appeared by the thoughts and convictions of
the time.
A.DocumentsfromN ationalArchive
165
B .DocumentsfromB adanW arisan
166
167
D.3D M odel
218
219
220
221
E .S caledDrawings
Final report compilation
Final report compilation
Final report compilation
Final report compilation
Final report compilation
Final report compilation
Final report compilation
Final report compilation
Final report compilation
Final report compilation
Final report compilation
Final report compilation
Final report compilation
Final report compilation
Final report compilation
Final report compilation
Final report compilation
Final report compilation
Final report compilation
Final report compilation
Final report compilation
Final report compilation
Final report compilation
Final report compilation
Final report compilation
Final report compilation
Final report compilation
Final report compilation

Final report compilation

  • 2.
    Bachelor of Science(Honours) in Architecture / (Architecture) METHODS OF DOCUMENTATION AND MEASURED DRAWINGS (ARC60305/ARC2323/ARC1215) Former Istana Negara, Balairung Seri Annex Building Report LECTURER: AR CHIN & MS ALIA
  • 4.
    i Abstract This document reportson the historically and architecturally significant data and information collected during the 5 days of onsite fieldwork for the module METHODS OF DOCUMENTATION & MEASURED DRAWINGS (ARC60305/ARC2323/ARC1215) in the Old Palace, Istana Negara Lama. Originally a doubled storey mansion of a Chinese millionaire, later the official resident for His Majesty and Her Majesty, this building functions as The Royal Museum now. Influential past of the country can be seen through the approach of design on the premise and the main building, internally and externally. Once colonized by the British, the main building, as a canvas painted with abundance and welfare, shows the devotion one country has to achieve the style of living of the British. The building annex, in lieu, shows the incorporation of both styles of the British as well as Malaysia’s own. As the main building of Istana Negara was documented in 2015, this report focuses on the annex building constructed in 1980, under supervision of Captain David Wee, mainly to accommodate the grand Balairung Seri (the Throne Hall) for official and customary functions. Documentations are done in the form of measured drawings, written and photographic documentation for the purpose of preserving accurate record of significant historical properties. Analysis on the architecture and status of the building as well as its potential to become a tourist attraction are also well explained.
  • 5.
    ii Acknowledgement The completion ofthis assignment could not have been possible without the guidance of tutors and the co- operation of all the teammates. Their effort and contribution are sincerely and gratefully appreciated. Therefore, team Istana Negara would like to express our unending gratitude to everyone who had guided us, particular to the following, Hayati Binti Mohamad Zawawi, the Director of the Istana Negara Museum, for providing us this opportunity to measure and document the historically and architecturally significance of the annex building in Istana Neagra; The staff, for being keen and accommodating in providing related information; The instructor, Dr. Nor Hayati Hussain, for giving us this golden opportunity and experience to develop understanding in methods of documentation and measured drawing. The tutors, Ar. Chin Tuck Heng and Nurul Alia Ahmad for their constant support, guidance and persistence through this journey. Lastly the lovely team members, for the teamwork and motivating team spirit through the entirety of this project.
  • 6.
    iii Declaration of Submission Wehereby certify all information and works done for the submission of the course that we are taking, Methods of Documentation and Measured Drawings ARC60303/ARC2323/ARC1215, are original and does not breach any law of copyrights. Written permission and references have been granted by any copyright holders. It is discerned that all works that are submitted for the final assessment are covered by this declaration. It is also asserted that all records and data were carried out during the period of our site visit from January 25th – 29th, 2016 in Istana Negara Jalan Istana. Conclusively, we have disclosed the necessary documentation related to this project. Daniel Rosien Bryan Lum (Leader of Team Istana) (Leader of Team Istana)
  • 7.
    iv Table of Contents iAbstract i ii Acknowledgement ii iii Declaration of Submission iii iv Table of Contents iv-ix vi List of Figures x-xix 1 Chapter 1: Introduction 1.1 Objectives and Aim 1 1.2 Methods of Measurement 2-3 1.3 Equipment Used 4 1.4 Literature Review 5 1.5 Significance of Study 6 1.6 Scope 7 1.7 Limitations 8
  • 8.
    v 2 Chapter 2:Historical Background 2.1 Malaysia and Kuala Lumpur 9-12 2.2 Malaysia's Institute of Constitutional Monarchy and Parliamentary Democracy 13-14 2.3 Malaysia's Palaces and Balairung Seri 15-18 2.4 Balairung Seri Annex Building 19-21 3 Chapter 3: Architectural Development 3.1 Site Context 22-23 3.1.1 Surrounding Buildings 24-28 3.1.2 Existing Buildings in Site Compound 29-31 3.2 Landscape 32 3.2.1 Hardscape 33-35 3.2.2 Softscape 36 3.2.2.1 Water 37-40 3.2.2.2 Plants 41-46 3.2.2.3 Light 47
  • 9.
    vi 3.3 Architectural Influences 3.3.1Corbusian International Style 48-49 3.3.2 Machine Regionalism 50 3.3.3 Islamic Architecture 51-54 3.3.4 Victorian Style 55 4 Design Concept 4.1 Form 56-58 4.2 Space Planning 59 4.2.1 Entrance and Approach 60 4.2.2 Islamic Architecture in Space Planning 61 4.2.3 Connection between Main Building and Annex Building 62-67 4.3 Singgahsana 68-72 5 Materials 5.1 Structural
  • 10.
    vii 5.1.1 Reinforced Concrete73-76 5.1.2 Steel 77-78 5.1.3 Timber 79 5.2 Finishing 80-81 5.2.1 Exterior 83-83 5.2.2 Interior 84-88 6 Construction Details 6.1 Columns of Balairung Seri 89-92 .2 Roof 93-95 7 Ornamentations and Details 7.1 Columns 96-97 7.2 Pilasters 98 7.3 Doors 99-101 7.4 Windows 102-103
  • 11.
    viii 7.5 Ceiling 104-105 7.6Lighting 106-107 7.7 Wooden Carvings 108-110 8 Comparison Analysis of the Balairung Seri Building in former Istana Negara and current Istana Negara 8.1 Site context 111-112 8.2 Architectural Influences 8.2.1 Exterior 113-114 8.2.2 Interior 115-116 8.3 Details 117-121 9 Recent Condition of the building 9.1 Structural Observation and Recommendation 9.1.1 Roof 122-124 9.1.2 Wall 125-126 9.1.3 Columns 127
  • 12.
    ix 9.2 Finishing Observationand Recommendation 9.2.1 Exterior 128-131 9.2.2 Interior 132-136 9.3 Historic Preservations and Conservations 137-139 9.4 Improvement Suggestions on Design 140-143 10 Conclusion 10.1 Architectural Role of Balairung Seri in search of National Identity 144-147 10.2 Aspiration for the building in future 148-152 Reference List 153-159 Glossary 160-163 Appendixes A. Documents from National Archive 164-165 B. Documents from Badan Warisan 166-167 C. Photo Book 168-216 D 3D Model 217-221 E. Scaled Drawing 222-248
  • 13.
    x List of Figures Figure1.1Team Istana measuring the interior of balairung (Lee, 2016) Figure 1.2.Equipment used. (Foo, 2016) Figure 2.1 Timeline of Malaysia History. (Lim, 2016) Figure 2.2 Jalur Gemilang as our nation's emblem. (Lim, 2014) Figure 2.3. Panaromic View of Kuala Lumpur in 1880 (Lim, 2009) Figure 2.4. Bird Eye View of Developed Klang Valley. (Rsmuthi, 2013) Figure 2.5.The list of Seri Paduka Baginda Yang Di-PErtuan Agong Malaysia. (Unknown, 2014) Figure 2.6.Istana Sri Menanti. (Kariya, 2015) Figure 2.7. Istana Jugra. (Wangsa Mahkota Selangor, 2010) Figure.2.8.Istana Iskandariah. (Hashim, 1986) Figure 2.9.Istana Alam. (Shafa, 2012) Figure2.10.Balsirung Seri of IStana Syarqiyyah. (Bensley, 2015) Figure 2.11Picture shows the temporary balairong built at Istana Negara, Jalan Istana. (NSTP, 1957) Figure2.12. The original colour of Cengal wood is exposed. (BERNAMA, 1980) Figure 2.13 Workers doing final touch for the preparation of the Instalation Ceremony of His Majesty Yang di-Pertuan Agong VII. (Bernama, 1980) Figure2.14 The throne of His and Hers Majesty. (Department of Information, 1980) Figure 2.15 The throne located in the small throne hall. (NSTP, 1966) Figure 3.1 The former Istana Negara perched on a hilly terrain. (Lim, 2016)
  • 14.
    xi Figure 3.2 Aerialview of the site surrounding. The former Istana Negara was bypassed by two main highway, which are the Jalan Istana and Jalan Syed Putra, with Klang River flowing by at the North West. The site is peppered with cultural buildings and government department headquarters. (Google Maps, 2016) Figure 3.3 Pejabat Penyimpanan Mohor Besar Raja-Raja). (Google Maps, 2016) Figure 3.4 Rumah Melaka at Jalan Bellamy. (Google Maps, 2016) Figure 3.5 United Nations High Commissions for Refugees.(Google Maps, 2016) Figure 3.6 Jalur Gemilang at the former Istana Negara. (Lim, 2016) Figure 3.7 The management office. (Lim, 2016) Figure 3.8 The shaded car porch.(Lim, 2016) Figure 3. 9 The gymnasium. (Lim, 2016) Figure 3.10 The tennis court. (Lim, 2016) Figure 3.11 Police Station of the Former Istana Negara. (Lim, 2016) Figure 3.12 The main building. (Lim, 2016) Figure 3.13 A combination of hardscape and softscape in harmony. (Lim, 2016) Figure 3.14 The homogenous tiles at the porch. (Lim, 2016) Figure 3.15 The collonaded porch.(Lim, 2016) Figure 3.16 Planter box with waterproof membrane.(Balasingam, 2016) Figure 3.17Drainage at the front portal. (Lim, 2016) Figure 3.18 Lamp post in cast iron. (Lim, 2016) Figure 3.19 Flag pole in front of the portal. (Lim, 2016) Figure 3.20The royal garden of Muzium Diraja. (Chin, 2016) Figure 3.21 Water is celebrated in most Islamic Architecture, including the Old Istana Negara. (Lim, 2016)
  • 15.
    xii Figure 3.22 Fountain.(Lim, 2016) Figure 3.23 The pool with pergolas. (Chin, 2016) Figure 3.24 Rivulet runs gracefully in the runnel. (Chin, 2016) Figure 3.25 Lake surrounded by greeneries. (Chin, 2016) Figure 3.26 The array of plants in the Old Istana Negara. (Lim, 2016) Figure 3.27 Iris in blossom. (Lim, 2016) Figure 3.28 Hibiscus in the vicinity. (Lim, 2016) Figure 3.29 Montgomery palms flanks the descending path towards the field. (Lim, 2016) Figure 3.30 Box clipped into hedges lines the border. (Lim, 2016) Figure 3.31Yew. (Lim, 2016) Figure 3.32 Hujan-hujan tree. (Lim, 2016) Figure 3.33 Trimmed hedges. (Lim, 2016) Figure 3.34 The garden adorned by fountain. (Lim, 2016) Figure 3.35 The reflection of light casts a picture on the granite floor.(Lim, 2016). FIgure 3. 36 The exterior of Balairung Building. ( Tey, 2016) Figure 3.37 The skybridge transverse across the building. (Tey, 2016) Figure 3.38 The rear elevation of the building. (Lim, 2016) Figure 3.39 The pelmet on the Singgahsana depicting the Quranic Verses.(LIm, 2016) Figure 3.40 The bedroom is adorned with cottage flora. (Lim, 2016) Figure 3.41The reception area of the apartment. (Lim, 2016) Figure 3.42 The Singgahsana. (Lim, 2016) Figure 3.43 His Majesty's bathroom. (Lim, 2016) Figure 3.44 Hers Majesty bathroom. (Lim, 2016)
  • 16.
    xiii Figure 3.45 Rococoinspired mirror frame. (Lim, 2016) Figure 3.46 Victorian style bedroom. (Lim, 2016) Figure 4.1Exterior view of the annex building (Chin, 2016) Figure 4.2Top view of the annex building (Lee, 2016) Figure 4.3Perspective view of North Elevation (Foo, 2016) Figure 4.4Ground Floor Plan of Balairung Seri(Tan, 2016) Figure 4.5Photo showing press room cutting through double volume throne hall (Lee, 2016) Figure 4.6Palm tree lined driveway (Lim, 2016) Figure 4.7Connectivity between the main building and the annex building. ( Lim, 2016) Figure 4.8The colonnade corridor. ( Foo, 2016) Figure 4.9The Entrance of grand Balairung Seri. ( Tan, 2016) Figure 4.10 Repetition of ogival window and floral motifs. ( Foo, 2016) Figure 4.11The ‘coffered’ ceiling. ( Lim, 2016) Figure 4.12 Interior view of the sky bridge (Lim, 2016) Figure 4.13Exterior view from the skybridge (Joshua, 2016) Figure 4.14 Simplified Ground Floor Plan. (Foo, 2016) Figure 4.15Chandelier and lighting effect in the atrium of Balairong Seri (Foo, 2016) Figure 4.16 Panaromic view of double volume Balairung Seri. (Joshua, 2016) Figure 4.17 Simplified first floor plan ( Foo, 2016) Figure 4.19 Gender segregated washroom (Yeoh, 2016) Figure 4.20 Victorian Style Interior (Yeoh, 2016) Figure 4.21 Simplified Lower Ground Floor Plan. (Foo, 2016) Figure 4.22Side view of the grand Singgahsana. (Foo, 2016) Figure 4.23 The throne. (Foo, 2016)
  • 17.
    xiv Figure 4.24 TheSeat, known as takhta. (Leong, 2016) Figure 4. 25 The pelmet with gilded inscription. (Leong, 2016) Figure 4.26 and 4.27 The background carvings. (Leong, 2016) Figure 4.27Closer shot on the carvings. (Leong, 2016) Figure 5.1Exterior façade view of the Balairung Seri (Lee, 2016) Figure 5.2Exterior wall (Lee, 2016) Figure 5.3Roof slab (Lee, 2016) Figure 5.4Interior ceiling and beams (Lee, 2016) Figure 5.5Columns at the porch (Lee, 2016) Figure 5.6Concrete Foundation (Lee, 2016) Figure 5.8Walls spray painted to give a rough finishing emphasizes the horizontal contrast between the smooth surface(Tey, 2016) Figure 5.9Diagram on concrete reinforced with steel rebar (Lee, 2016) Figure 5.10Arches made with the usage of reinforced concrete(Lim, 2016) Figure 5.11Steels are welded together (Lee, 2016) Figure 5.12Steel trusses and timber are seen supporting the structure (Lee, 2016) Figure 5.13Rotten interior timber column and a badly damaged wall at the edge of the meeting room (Lee, 2016) Figure 5.14. Finishing diagram at Ground level. Most of the finishing are focused on public area. (Lim, 2016) Figure 5.15. Finishing diagram at First level. Most of the finishing are focused on the suites (Lim, 2016) Figure 5.16Rendered plaster on top of the concrete (Tey, 2016) Figure 5.17 The steps (Lim, 2016)
  • 18.
    xv Figure 5.18 Floorof the colonnade (Lim, 2016) Figure 5.19 Roof of the colonnade (Lim, 2016) Figure 5.20 Old balairung in dark wood panelling (Lim, 2016) Figure 5.21 Roof of the colonnade (Lee, 2016) Figure 5.22 Private room (Tey, 2016) Figure 5.23 Detailing on ceiling (Kong, 2016) Figure 5.24The plasterboards inside of the throne (Lim, 2016) Figure 5.25 Plush carpet (Lim, 2016) Figure 5.26 Parquet flooring in the sky brige (Lim, 2016) Figure 5.27 King’s bathroom (Lim, 2016) Figure 5.28 Mirror finished cabinet doors (Lim, 2016) Figure 6.1 members in a column (Tey, 2016) Figure 6.2 Difference between structural and decorative column (Tey, 2016) Figure 6.3 The Doric Columns supporting the porch. (Eng, 2016) Figure 6.4 Engaged column exposed in façade. (Eng, 2016) Figure 6.5 Column part terminologies. (Tey, 2016) Figure 6.6 Parts of Tuscan column (Tey, 2016) Figure 6.7Drawing showing relationship of structural and decorative column in the throne (Neoh, 2016) Figure 6.8 Bird eye view of annex building roof. (Lee, 2016) Figure 6.9 Expanded metal walkway between two building. (Lee, 2016) Figure 6.10 Illustration showing concrete gutter section and fixing on metal sheet (Foo, 2016) Figure 6.11 Concrete gutter. (Foo, 2016) Figure 6.12 Section of concrete tile roof.(Neoh, 2016) Figure 6.13 Concrete tile roof & concrete gutter.(Lee, 2016)
  • 19.
    xvi Figure 7.1Single anddouble columns (Lee, 2016) Figure 7.2 Placement of columns (Tey, 2016) Figure 7.3Columns in Balairung(Lee, 2016) Figure 7.4Throne area inside the Balairung (Lee, 2016) Figure 7.5Pilaster in meeting room (Lim, 2016) Figure 7.6Pilaster in Balairung Seri (Lim, 2016) Figure 7.7 Entrance of to the King and Queen’s suite from the skybridge (Lee, 2016) Figure 7.8Entrance to the main Istana Negara building (Yeoh, 2016) Figure 7.9 Entrance to the Holding room of the Balairung Seri (Lee, 2016) Figure 7.10Wooden carvings and floral motif which are painted gold as ornamentation (Lee, 2016) Figure 7.11Wooden double doors with floral carving, leading to the Meeting Room (Tey, 2016) Figure 7.12Simple wooden double doors, leading to the Queen’s bedroom (Lee, 2016) Figure 7.13Pointed arch window inside Balairong Seri (Lee, 2016) Figure 7.14Floral ornamentation in Balairung Seri (Lee, 2016) Figure 7.15 Coffered ceiling at Balairung Seri. (Lim, 2016) Figure 7.16Covered skirting arranged in and orderly manner (Lee, 2016) Figure 7.17 Plasterboard ceiling with coving surrounding (Lee, 2016) Figure 7.18Chandelier of the Balairung Seri. (Lee, 2016) Figure 7.19 Chandelier in the sky bridge (Lim, 2016 Figure 7.20 Chandelier at the bedroom with motifs of blooming roses (Lim, 2016) Figure 7.21 A panoramic view of the throne along with the heavily adorned wall (Lee, 2016)
  • 20.
    xvii Figure 7.22A closedup image of the wooden carved panels below the coffered windows (Lim, 2016) Figure 7.23 Wooden patterns carving on the top of the coffered windows (Lee, 2016) Figure 8.1. Aerial View of Old Istana. (Google Maps, 2016) Figure 8.2. Aerial View of New Istana.(Google Maps, 2016) Figure 8.3. Aerial View of Old Istana. (Google Maps, 2016) Figure 8.4. Aerial View of New Istana.(Google Maps, 2016) Figure 8.5. Exterior of the main building with the East wing on the right.(Lim, 2016) Figure 8.6..Exterior of the New Istana Negara.( My Sumber, n.d.) Figure 8.7. The grand gateway view. (Bretuk, n,d,) Figure 8.8. Interior of the Balairong Seri at the Old Istana Negara.(LIm, 2016) Figure 8.9 Interior of the Balairung Seri at the New Istana Negara (Bernama, 2012) Figure 8.10 The coffered ceiling. (Lim, 2016) Figure 8.11 The New Balairung Seri's ceiling. (Lim, 2016) Figure 8.12 The carpet in the former Balairung Seri. (StatcFlick, n.d.) Figure 8.13 The minimalistic carpet in the New Balairung Seri. (Fadzil, 2011) gure 8.14 The chandelier in Former Balairung Seri. (Lim, 2016) Figure 8.15 The obor-obor inspired chandelier. (JKR, 2011) Figure 8.16 The bunga raya inspired panels. (Lim, 2016) Figure 8.17 The tebuk tembus bersilat timber panel. (JKR, 2011) Figure 8.18 The old Istana Negara Balairung Seri. (Bernama, 2012) Figure 8.19 The former Singgahsana (Lim, 2016)
  • 21.
    xviii Figure 9.1 Growthof wild on the roof tiles. (Yeoh, 2016) Figure 9.2 Rusted Roof could easily cause leakage. (Yeoh, 2016) Figure 9.3 Damp patches (Yeoh, 2016) Figure 9.4 Algae on the wall of sky bridge. (Yeoh,, 2016) Figure 9.5 Algae on the ceiling of the porch (Yeoh, 2016) Figure 9.6 The exterior wall with algae growth. ( Yeoh, 2016) Figure 9.7 Column at the south elevation. (Yeoh, 2016) Figure 9.8 Water leakage in ceiling. (Yeoh, 2016) Figure 9.9 Damagedwindow frame. (Yeoh, 2016) Figure 9.10 Exterior ceramic tiles. (Yeoh, 2016) Figure 9.11 Peeling off paint. (Yeoh, 2016) Figure 9.12 The interior of Balairung Seri with plush carpet. (Yeoh, 2016) Figure 9.13 The panels with embroidered fabric. (Yeoh, 2016) Figure 9.14 Interior wall of Personal Dining Room in Queen Suite (Yeoh, 2016) Figure 9.15 Paint cracks at the suites. (Yeoh, 2016) Figure 9.16 Queen’s bathroom (Yeoh, 2016) Figure 9.17 King’s bathroom (Yeoh, 2016) Figure 9.18 Wood decay (Yeoh, 2016) Figure9.19Short section cut of Balairung Seri. (Neoh, 2016) Figure 9.20Floor Plan of dressing room and water closet at first floor. (Tan, 2016) Figure9.21Gap between the staircase and the wall (Foo, 2016) Figure9.22Grille staircase in the exterior. (Foo, 2016) Figure.9.23The asymmetrical plan of the throne hall. (Lim, 2016) Figure 10.1. Chandigarh Capitol by Le Corbusier. (Canadian Centre of Architecture, 1956)
  • 22.
    xix Figure 10.2A mapof Kuala Lumpur’s major tourist attractions (Mari mari, 2014) Figure 10.3Picnic in Keningston Garden (Caroline, 2013) Figure 10.4. Table of comparison among Royal Gardens.( Rosien, 2016) Figure 10.5Banquet set up in the garden (Debbie, 2015)
  • 23.
    1 Objectives and Aims Theobjective of this study is to document the significance of the building which is the Royal Museum Balairung Seri Annex Building to analyze the relationship between the architecture of the building as well as its settlement. A week of site inspection was given to our group in order to carry out compilation of data that was to be incorporated into drawings. These drawings which consist of floor plans, sections, elevations and site plan were then used as a reference for the scaled model of the Royal Museum. In addition to that, a report is also required to document our findings. Thus, all important findings and data of the building should be collocated. Pictures of the overall building which includes the exterior and interior views are also included in the report.
  • 24.
    2 Methods of Measurement Inorder to complete the research and documentation of the Royal Museum, various ways have been implemented. Our team of 27 students were grouped into four sub groups which were tasked to do several parts of the building in order to progress quick and smoothly. Each sub-group is handled by a team leader who is in charge of leading and keeping their team up to date with the progress. There are several measuring methods used, one was a hands on experience where we would measure on site using several equipment. On the contrary, the second method was to refer from previous reports on the building which in our case, was to refer our seniors work. Pictures were also taken for the purpose of references. Measuring tapes were mainly used in measuring the building as it is a common measuring tool. Its design allows for a measure of great length and can be easily carried in a pocket or toolkit. It is mostly used for measuring the building floor plans, columns and details while the digital laser device was used in measuring the height of the building and ceilings as it is more convenient to use in measuring longer distance of measurement. In order to obtain the plan of the roof, a drone was used. The drone helps to capture a clear view of the roof and also the surrounding as well as the elevations of the building. As some of the walls were slanted and 90 degree angled, a spirit level was used.
  • 25.
    3 Considering the ornamentswere small and very detailed, a profile gauge was used to measure the detailing part. But due to the low accuracy and precise measurement, we used a different method as it is presumed to be more accurate. The method was to take a picture of the specific detailed ornaments and trace it in Autocad. After tracing the ornaments, the tracing part was later scaled down to tally with the main measurements. Figure 1.1Team Istana measuring the interior of balairung (Lee, 2016)
  • 26.
    4 Equipment Used Figure 1.2.Equipment used. (Foo, 2016)
  • 27.
    5 Literature Review Currently standingas the Royal Museum, Istana Lama also known as the metaphor of time in Malaysia. Originally a doubled storey mansion of a Chinese millionaire Chan Wing, this building used as officers‟ mess during Japanese Occupation, and owned by British Royale Air Force during the war. Later, it becomes the temporary Palace for the Sultan of Selangor and lastly, the official resident for His Majesty Seri Paduka Baginda Yang Di-Pertuan Agong and Her Majesty Seri PadukaBaginda Raja Permaisur iAgong. Related data and information are collected mainly from online material, National Archive, National Library, pamphlet, Badan Warisan and some other related architecture books. Basic drawings for main building, architecture style, and cultural aspects are discussed. However, information mainly focuses on the main building and there is not much information that explains about the annex building, renovated for the grand Balairung Seri (the Throne Hall) for official and cultural ceremony. Besides, we were unable to contact the Public Works Department (Jabatan Kerja Raya) who had carried out the construction, thus further research can be done from there in the future.
  • 28.
    6 Significance of Study Otherthan understanding the architecturally important quality from the Istana Lama (The Royal Museum), this project also aims to preserve the historically significant information of this building in relation to Malaysia‟s history. As a Malaysian, it is important to understand the growth of our country and witness the development as well as achievement of it. By documenting this building in depth, it allows more people to be exposed to the royal lifestyle in Malaysia, from the daily lifestyle to the official and customary functions. This project is documented in the form of sketching, drawings, video, and reports, aiming to uncover the stories behind the old palace, especially the Islamic Culture in the Palace.
  • 29.
    7 Scope Focused on thebuilding annex of the Royal Palace on Jalan Istana, a study was carried out. Served once as a palace for the royals, now a museum for the public to view, the royal palace is a place where high values of cultural and history can be seen and learnt. The documents of the current state of the Royal Palace Balairung Seri are not the only focuses in the study but also the history of the function of the structure and the development of the building within years. Furthermore, a comparison was made with the latest Royal Palace which is located at Jalan Duta, where the Yang di-Pertua Agong now lives since the year 2011. This is to show the contrast in development and changes in architectural style. The purpose of these observations was to document the significance and the condition of the building and to allow improvements and maintenance of the building.
  • 30.
    8 Limitations The royal palace,now a royal museum has a wide range of limitation to areas as it is a place for public visiting. Although restricted to enter the certain areas, one can only view the rooms behind rails. Therefore, it was an upmost honor to be allowed access to areas that was constricted to the visitors. Although we were reminded to enter the areas carefully in order to avoid visitors supervening our actions. Documentation and media sources on the building annex were quite limited as most of the information was about the main building. Documenting the structure itself was a difficult challenge as the verbal and non-verbal information that we have gathered were mainly focusing on the usage of the building (for example, the coronations of the Sultans) rather than the architecture of the structure. Besides that, it was also very rare to find documents regarding the Balairung Seri before it underwent changes. Lastly, the inspection for the documentation does not include an assessment of geological, geotechnical, or hydrological conditions, or environmental hazards. It also does not include areas, which were inaccessible, not readily accessible or obstructed at the time of inspection.
  • 31.
    9 2.1 Malaysia andKuala Lumpur Figure 2.1 Timeline of Malaysia History. (Lim, 2016)
  • 32.
    10 Today, celebrating ournation's 59 years of independence, we as Malaysians would like to pose a question to ourselves: Have we found the national identity that our forefathers had been searching for, and if so, do we behold and cherish that very special identity of being Malaysian? From an architectural perspective, we would like to start this journey from the old Istana Negara, the old National Palace, the symbol of sovereignty and dignity of this land to find the answer. Figure 2.2 Jalur Gemilang as our nation's emblem. (Lim, 2014)
  • 33.
    11 Kuala Lumpur &Riches Formerly as a tin mining valley, it soon became the lure of the mid-19th century, hence captured the attention of a group of miners to migrate to the valley in between 2 rivers which is Klang River and Gombak River. The city covers an area of 243 km2 (94 sq mile). In the 19th century, Klang Valley was threatened and devastated with diseases, epidemics, fires and floods. Later on, this situation came to an end when Malaysia was colonized by the British. Yap Ah Loy stayed through this situation and helped out in the renovation as well as improvement of Klang Valley. In 12-month time, the population of Klang Valley has vigorously increased by 30%. In March 1880, Klang Valley was then renamed as Kuala Lumpur. The meaning of Kuala Lumpur is “muddy confluence”. Since then, the tie between tin and the land can never be untangled, as undeniably, it is this humble mineral that became the soul which brought vibrancy and life to this sleeping land of riches. Figure 2.3. Panoramic View of Kuala Lumpur in 1880 (Lim, 2009)
  • 34.
    12 In this era,a foresighted Chinese teenager, Chan Wing fled Canton and arrived in Kuala Lumpur, started his quest for a better living. He ventured in bank and tin mining industry and successfully earned buckets of gold from his mining company, Hong Fatt Tin Mine. As any millionaire, he sought for recognition of wealth, most significantly and easily through the language of architecture, by building a mansion fit for a king. When Kuala Lumpur proved no longer a secure place for him during World War II, he fled, left his mansion occupied by the Japanese and the British. Finally, the mansion was revived after Malaysia obtained independence in 1957, being converted to the Palace for the Yang di-Pertuan Agong of Malaya, truly a mansion, fit for a king. Nowadays, the land is situated at the heart of Kuala Lumpur, the capital of Federation of Malaya, a fast-paced developing city which has 1.6 million people lived in. Silently, this plot of land observed and recorded the history, waiting to be discovered. Figure 2.4. Bird Eye View of Developed Klang Valley. (Rsmuthi, 2013)
  • 35.
    13 2.2 Malaysia's Instituteof Constitutional Monarchy and Parliamentary Democracy Our nation's Institute of Constitutional Monarchy and Parliamentary Democracy is one of its kind among other nations. To preserve the Sultanate Monarchy which had lasted since the Malacca Sultanate in the 1400s under the reign of Parameswara, also known as Sultan Iskandar Shah and strike a balance among the people's rights in political affairs, this distinct system is being employed. Constitutional Monarchy (Raja Berpelembagaaan) A constitutional monarchy is a system in which the monarch‟s power is limited by the constitution of the state. In other words, the monarch wields only the power as granted by the law, and does not hold absolute power. On the federal level, the head of state, the Yang di- Pertuan Agong, sits at the apex of the Malaysian society. He is a symbolic representation of a nation‟s authority. Based on the Westminster parliamentary system, the Malaysian political system does grant the Yang di- Pertuan Agong some limited powers, including the power to grant or refuse a dissolution of the parliament, and appointing a prime minister. Besides, His symbolic roles include being the Commander-in-Chief of the Malaysian Armed Forces and carrying out diplomatic exchanges with other states. Just like it was during the British colonial period, the Yang di-Pertuan Agong is also the head of Islam in his own state as well as the four monarch-less states of Penang, Malacca, Sabah and Sarawak as well as the Federal Territories.
  • 36.
    14 The Yang di-PertuanAgong The Yang di-Pertuan Agong is elected to a five year term from among the 9 Malay state rulers. After the Yang di- Pertuan Agong‟s term of office, the conference of rulers will then elect another to replace him. The position of Yang di-Pertuan Agong is rotated among the 9 rulers, with a cycle that begins with the election of the Yamtuan Besar of Negeri Sembilan (Negeri Sembilan does not have a Sultan) to the office of the Yang di-Pertuan Agong, followed by: 1. The Sultan of Selangor , 2. The Raja of Perlis, 3. The Sultan of Terengganu, 4. The Sultan of Kedah, 5. The Sultan of Kelantan, 6. The Sultan of Pahang, 7. The Sultan of Johor before ending at 8. The Sultan of Perak, Figure 2.5.The list of Seri Paduka Baginda Yang Di-PErtuan Agong Malaysia. (Unknown, 2014)
  • 37.
    15 2.3 Malaysia's Palaces& Balairung Seri Since the reign of Malacca Sultanate in Malaya, palaces had been built for the royal families of various architectural influences based on the preference of the Sultan of every state. Palace is the emblem of sovereignty and authority, where the nation's pride lies. Balairung Seri generally serves as the heart of the palace, where the Singgahsana, the throne is located. It serves as a royal sanctum for official and customary occasions, such as the ceremonial affairs for the taking of the Royal Pledge during the Installation of the Yang Di-Pertuan Agong, the taking of oath by Ministers, the presentation of Federal Orders, Decorations and Medals during the Investiture ceremony, dinners for Conference of Rulers, taking of oath of Secrecy by the Prime Minister and his Deputy, the royal birthday celebrations and State banquets. (Biannual, 1999) From the following comparison, we can see the gradual transformation of the architectural language depicted by the Istana and Balairung Seri, largely influenced by the epoch, from the traditional Minangkabau vernacular, to an influence of Moghul and Romanesque, to the integration of colonial and Saracenic, largely influenced by the Western palaces with manicured gardens, lastly a revivalism back to the roots of Islamic architecture in a modernist approach.
  • 38.
    16 Figure 2.6. IstanaSri Menanti. (Kariya, 2015) Istana Sri Menanti Built in 1902, palace is an emblem of Minangkabau architecture, that emphasize family, nature and arts, Constructed entirely using vernacular tenon and mortise joints of hardwood with 99 structural columns of hardwood symbolized the 99 hulubalangs that served the state (Arkib Negara, n.d.). Unlike other Singgahsana that show grandness and overpowering, this design revealed an intimately poise and pensive nature. Istana Jugra Built in 1905, western influences started to assimilate with the local architecture, colonial inspirations are clearly exhibited. The expression of Roman and Moghul elements can be seen. In space planning, the Balairung Seri is located at the south east end of the building, receiving its honoured guests in a symmetrical square plan, depicting order and balance for a state's ruler, drawing inspiration from the west. Figure 2.7. Istana Jugra. (Wangsa Mahkota Selangor, 2010)
  • 39.
    17 Figure 2.8.Istana Iskandariah.(Hashim, 1986) Istana Iskandariah Completed in 1933, the palace is the emblem of Indo- Saracenic architecture, which is the amalgam of Islamic architecture and Indian materials developed by British architects in India during the colonial era. (Jeyaraj, n.d.) Facing the East with pointed arched and onion-shaped domes, the symmetrical complex accommodates a Balai Nobat, Balairung Seri and Singgahsana in a linear percussion. Figure 2.9.Istana Alam. (Shafa, 2012) Istana Alam Shah Rebuilt in 1950s, the central golden onion dome dominates the palace with two high pitched, blue tiled wings. Similar as the old Istana Negara, a Balairong Seri lined with red carpet can accommodate 1000 people was built for coronation and other important ceremonies. The Istana has a renovated Balai Santapan Diraja with a capacity of 1000 patrons. As the Old Istana Negara, the vicinity is a man-made garden of French Renaissance.
  • 40.
    18 Figure2.10.Balsirung Seri ofIStana Syarqiyyah. (Bensley, 2015) Istana Syarqiyyah Adorned as "Jewel of the East", the design of the palace is of a blend of Islamic and vernacular revivalism, inspired by the Alhambra in Spain, embodied in this palace of castellated traditional timber structure, evocative of Babylon's Hanging Garden. The Balairung in this palace is greatly influenced by Moorish architecture with arched blue marble colonnades whereby the gilded Singgahsana stands out prominently, with a skylight dome directly illuminating the Singgahsana from above. Unlike the Old Istana's Balairung, with a grand percussion, straight towards the Singgahsana, the Balairung in Istana Syarqiyyah's percussion can be truncated into three quadrants using movable partition panels, for holding different occasions, a distinct hierarchy symbolization.
  • 41.
    19 2.4 Balairung SeriAnnex Building A temporary Balairong was built in the year of 1957 after the mansion was made into the palace to hold the coronation of SPB Yang di-Pertuan Agong Tunku Abdul Rahman. The construction of the temporary throne hall cost RM170000 and it was later demolished at the end of the same year. Later in the year of 1980, a massive renovation was carried out at the palace to add in an annex building which is the current existing throne hall and the construction was led by senior architect, Kapten David Wee from the Public Work Department with the purpose of holding the coronations of Agong and official and customary ceremonies. Local designers as well as designers from France were hired to design the interior of the building. The ground floor accommodates the double volume Balairong Seri (Throne Hall), waiting halls and meeting rooms, whereas the first floor contains Their Majesty's suite. One of the most astonishing feats undertaken by the renovation team was the completion of works and intricate carvings for the Throne Room. It took seven months to complete the work, including the carvings which would normally have taken three years, according to Captain David Wee. All carvings was carried out by expert craftsmen from Kota Bahru, Kelantan, by 60 Figure 2.11Picture shows the temporary balairong built at Istana Negara, Jalan Istana. (NSTP, 1957)
  • 42.
    20 workers led byMr Abdul Latif. Inspired by the national flower, the Hibiscus, all panels are hand crafted to meet the highest standard of Malay traditional carvings. All the gilded panels lined the grand percussion of the Throne Hall, heightening the grandiose of the building. The beauty of the Throne Room is enlightened with the 17 crystalline chandeliers imported from Austria. (Masterpiece, 1999) From the old photos exhibited at the throne hall, it can be seen that the original color of the interior walls was actually dark brown while the wall patterns can be seen in grid design, further renovations which involved repainting the walls and discarding the grid design was estimated to be around the year of 2002-2007, the exact dates and years of the renovation remain unknown at this moment. The reason of using white, yellow and gold in the latter was to emphasize and strengthen the majesty of the royal family. Coronation of 13 Agongs had been held in this hall before it was made a museum by the local government, the last coronation held here was in 2007. Figure2.12. The original colour of Cengal wood is exposed. (BERNAMA, 1980)
  • 43.
    21 Clockwise: Figure 2.13. Workersdoing final touch for the preparation of the Installation Ceremony of His Majesty Yang di- Pertuan Agong VII. (Bernama, 1980) Figure2.14. The throne of His and Hers Majesty. (Department of Information, 1980) Figure 2.15. The throne located in the small throne hall. (NSTP, 1966)
  • 44.
    22 3.1 Site Context Locatedat Jalan Istana, the heart of Kuala Lumpur, with a coverage of 11.34 hectars, the Old Istana Negara perched on Bukit Petaling surrounded with towering trees, overlooking the iconic buildings of Kuala Lumpur (figure 3.1). The hustle and bustle of the city is soon muted by the natural buffer of lush flora and foliage. Figure 3.1. The former Istana Negara perched on a hilly terrain. (Lim, 2016)
  • 45.
    23 Figure 3.2. Aerialview of the site surrounding. The former Istana Negara was bypassed by two main highway, which are the Jalan Istana and Jalan Syed Putra, with Klang River flowing by at the North West. The site is peppered with cultural buildings and government department headquarters. (Google Maps, 2016)
  • 46.
    24 3.1.1Surrounding Buildings Keepers ofthe Ruler's Seal Office (Pejabat Penyimpanan Mohor Besar Raja-Raja) Established in 1948 according to the summon of Perjanjian Persekutuan Tanah Melayu towards the independence of Malaya, the office takes the role of managing all official and customary affairs of the Sultans and Yang di-Pertua Agong, such as convening the Conference of the Rulers, management and declaration of annual Ramadhan, Hari Raya Puasa and Hari Raya Qurban, arrangement for the Rulers' transportations to meetings and conferences and holding of the Ruler's Seal (Majlis Raja-Raja, 2010), which is the symbol of sovereignty of the Conference of the Rulers. Figure 3.3. Pejabat Penyimpanan Mohor Besar Raja-Raja). (Google Maps, 2016)
  • 47.
    25 Public Works DepartmentBukit Petaling (Jabatan Kerja Raya Bukit Petaling) Bearing the responsibility of planning, design and construction of public and government endorsed works, including the construction and renovations of the former Istana Negara Balairung building, the branch of public works department is situated at Jalan Bukit Petaling. Rumah Melaka A British colonial house once used as a guest house for honored guests from the Royals. Figure 3.4. Rumah Melaka at Jalan Bellamy. (Google Maps, 2016)
  • 48.
    26 United Nations HighCommissions for Refugees As part of the United Nations, Malaysia joined the forces of the international partnership in protecting, aiding and facilitating refugees that seek asylum in our country in terms of healthcare, educational and financial welfare. The operations started in Malaysia in 1975, when Vietnamese refugees fled their home to Malaysia, and since, with the cooperation with other nations, had helped 240,000 of them to relocate to other developed countries. (UNHCR, 2011) Today, the organization still functions as a beacon, lending a hand to the refugees and hope to make a difference in their life. Red Crescent Malaysia National Headquarters (Bulan Sabit Merah Malaysia) Since 1950s, the organization had carried out voluntary, humanitarian philanthropic works for the people of Malaysia. The national headquarters is located at the North East of former Istana Negara. Figure 3.5. United Nations High Commissions for Refugees. (Google Maps, 2016)
  • 49.
    27 Kuen Cheng HighSchool Established since 1908, the Chinese Independent High School stood as a testimony of the Chinese to uphold their integrity in education and the inheritance of Chinese heritage through years of grappling with wars, legislative obstacles and financial problems. Originally as a girls' school, it was located at No.31 Kampung Attap and was forced to close down during World War II. In 1956, it was relocated to the current site and insisted in Kuen Cheng's "Independent Chinese Education" that had stood the test of time for more than half a century, nurturing elites in various fields. In 2008, the school reorganized to become a co-ex school. (Kuen Cheng, n.d.) Alice Smith International School In year 1946 at the end of World War II, British Mrs. Alice Smith started her very first school at her home in Kuala Lumpur, with the vision to "ensure that expatriate children returning to education in their home country or moving to a school in another country could do so as seamlessly as possible." In 1950, Mrs. Smith left Malaya for Australia and in 1952, the school relocated to Jalan Bellamy. With the same passion as Mrs. Smith possessed, the school had been operating for over 60 years, inspiring and nurturing the young in Kuala Lumpur. (Alice Smith School, n.d.) .
  • 50.
    28 Surrounding Buildings inrelation to the Former Istana Negara It short, the surrounding buildings can be classified into three attributes, cultural, educational and humanitarian. The Keeper's of the Seal Office, Rumah Melaka and the Public Works Department branch carries significant roles in our country's monarchy culture. The United Nations High Commissions for Refugees and Red Crescent Malaysia National Headquarter holds pivotal role in humanitarian works. Whereas Kuen Cheng High School and Alice Smith International School are the pioneers in our country's educational system. When these attributes are placed side by side, we can conclude that the vicinity tells a discreet message in our nationhood, whereby the heart of the nation, which is symbolized by the Istana Negara, is centered around these very essentials in establishing a holistic country, which are education for the people, preservation of cultural heritage and the contribution towards the society. Figure 3.6. Towering buildings surrounding former Istana Negara. (Lim, 2016)
  • 51.
    29 3.1.2 Buildings inSite Compound Management Office Housing the administrative office for the Museum curator and staff. The building speaks of a similar architectural style as the Balairung Seri, with arch louvered windows and Brutalist massing in a reduced geometry, painted in cream. Car Porch With 102 shaded bays for the staff, the car porch is surrounded by vegetations. Figure 3.7. The management office. (Lim, 2016) Figure 3.8. The shaded car porch. (Lim, 2016)
  • 52.
    30 Gymnasium Located behind thetennis court, equipped for games, exercises and sports activities. Built with a corrugated zinc roof, the gymnasium offers a conducive environment for exercise, shaded from the hot sun. Tennis Court A standard tennis court is located behind the car porch. The court is guarded with wire fences and with lamp posts illuminating the court at night. Figure 3. 9. The gymnasium. (Lim, 2016) Figure 3.10. The tennis court. (Lim, 2016)
  • 53.
    31 Police Station Located atthe south of the Balairung Seri Annex Building, it provides all time protection for the royalties against threats, with in-house constables, officers and policemen. Main Building Influenced by the Palladian and British Colonial style, the symmetrical main building houses the apartments for the royal family, banquet rooms, minister rooms, family rooms, small throne room, dentist clinic, guest rooms etc. Originally a mansion for Chinese millionaire, Mr Chan Wing it was eventually converted into a military mass for the Japanese Army during World War II, followed by an air force control base for the British Military Administration. Thereafter, the mansion was finally transformed as the first National Palace for the Yang di- Pertua Agong of Malaysia. Figure 3.11. Police Station of the Former Istana Negara. (Lim, 2016) Figure 3.12. The main building. (Lim, 2016)
  • 54.
    32 3.2 Landscape The landscapeof the former National Palace consists of Hardscape and Softscape. Hardscapes are the man- made structure, whereas softscapes are natural elements. Figure 3.13 A combination of hardscape and softscape in harmony. (Lim, 2016)
  • 55.
    33 3.2.1 Hardscape Walkway (pavedroad) The walkway leading to the entrance of the Balairung Seri and around the building consists of square porcelain tiles in earth gray tone. The tiles of the walkway are arranged in a geometric pattern at the gateway and the main porch, whereas those in front of the Balairung Seri are homogenous. Colonnade Porch A shaded roof structure supported by rows of mirrored Doric columns, fluted and devoid of ornamentations. Arches are deployed to distribute the load equally through the structural columns from the capital to the base. Figure 3.14. The homogenous tiles at the porch. (Lim, 2016) Figure 3.15. The colonnaded porch. (Lim, 2016)
  • 56.
    34 Planter Box The planterbox is affixed outside the Balairung Seri to portray local grown flowers and plants. The placement of these planter boxes are convenient for cleaning purposes and are able to receive efficient sunlight although being affixed near to the walkway‟s roof shade. A waterproof membrane is implemented behind the planter box that connects to the Balairung Seri to avoid any leakage inside the building. Drainage Drainage by definition is an artificial man-made passage for excess water to flow. The drainage of the Balairung Seri can be seen around the building itself making drainage during rainy days easier as it prevents the occurrence of flooding. The drainage found along the Balairung Seri varies from closed drains to partially covered drains. Figure 3.16. Planter box with waterproof membrane. (Balasingam, 2016) Figure 3.17 Drainage at the front portal. (Lim, 2016)
  • 57.
    35 Lamp Post Gilded castiron lamp posts peppered around the vicinity of the palace to illuminate the night gracefully. Flag Pole Located at the front of the central axis of the main building, our nation's Jalur Gemilang billows in pride on the 12m flagpole, a constant reminder of the sovereignty of the country. Figure 3.18 Lamp post in cast iron. (Lim, 2016) Figure 3.19 Flag pole in front of the portal. (Lim, 2016)
  • 58.
    36 3.2.2 Softscape As apalace for our country, Islamic Architecture values are integrated. The building was designed to be situated amidst a garden, emblematic of the Paradise in Islamic cultures. In Islam, the spiritual and physical experience of garden with life is inseparable. The symbolism of an Islamic garden represents a universal theme - that of the understanding of nature and the universe (Roche, 2015), which is clearly integrated in an ecological outlook of the built environment, whereby nature and man correlates harmoniously. Here, man coexists with the environment, giving away and receiving in return. From this partnership, man is bound to attain peace, while floral and foliages thrives and flourishes, unbridled and verdant. Figure 3.20 The royal garden of Muzium Diraja. (Chin, 2016)
  • 59.
    37 3.2.2.1 Water In Islam,water is seen as life-giving, sustaining, and purifying as the Qu'ran states, "From water every living creature was created." (James, 2009). It represents the gracious gift of Allah to mankind, which comes in the number of 4, representing the 4 earthly rivers: the Nile, Euphrates, Sayhan and Jayhan, the streams from the Garden of Eden, which is paradise. According to Prophet Muhammad's recordings of his miraculous journey to the heaven, he mentioned four rivers flowing with milk, honey, wine and water. (Hilmi, 2014). From these accounts we can conclude that the number four has the inherent symbolism reflecting the natural world and water is also a symbol of life and prosperity, as without water, man's existence would be a short-lived affair. Thus, water is cherished, honored and channeled as a language of architecture in the garden and there is a total of four types of water features introduced here. In architectural context, water gracefully depicts reflection, refraction and transformation of light throughout the day (Hilmi 2014), which enriches the building's visual experience. This draws people closer to God through quiet meditation and to echo the Qur'anic phrase of "gardens underneath which rivers flow". (Hilmi, 2014). Figure 3.21 Water is celebrated in most Islamic Architecture, including the Old Istana Negara. (Lim, 2016)
  • 60.
    38 Fountain Two identical Arabesquefountains welcome the patrons with cascades of pristine water, whereby the soothing gushes of water calms the spirit and the sprinkles of water freshens the air. It cleanses the souls of patrons before entering the complex. Pool A swimming pool offers splashes of cool refreshing water for the royal family during a hot summer. The pool is lined with pergolas to achieve the Islamic teaching of Haya, which means modesty, whereby it acts as a filter to provide certain degree of privacy for the royals without obstructing the views towards the surrounding. Figure 3.22 Fountain. (Lim, 2016) Figure 3.23 The pool with pergolas. (Chin, 2016)
  • 61.
    39 Runnel Run alongside thestairway towards the pool, water trickles down the runnel, symbolizing the longevity of life. The water runnel is aligned to the Qibla line, facing the holy land of Mecca, as the Balairung Seri, the throne hall. Figure 3.24 Rivulet runs gracefully in the runnel. (Chin, 2016)
  • 62.
    40 Lake Embraced by lushfloral and foliage, an oasis among the heart of the city of Kuala Lumpur, the lake is a sanctuary for the Royal Family. The towering trees surrounding the lake are the natural sunshades that cast delicate shadows of the foliage in this hot tropical climate while the royalties can enjoy the serenity of the place. During early days, Koi and carps were rared in the lake. Koi is a symbol of auspicious in Chinese belief, so it is evident that due to the multiracial background of our country, cultural assimilation seeps deep in the root of our people. Figure 3.25 Lake surrounded by greeneries. (Chin, 2016)
  • 63.
    41 3.2.2.2Plants Muslims appreciate natureas a source of joy, inspiration and enlightenment. Tree is a symbol of wisdom, roots in meditation and bears fruit of spirit. "Tree of life" is seen as the connecting link between the three world levels of ancient Orient: The Paradise (sky), World of human (earth) and the World Below (underworld), (Munday, 2004) with its branches and foliage soaring towards the sky, trunk on the ground and roots deeply engraved in the soil. Wide arrays of tropical flora lght up the garden with vibrant colours and wafts of fragrance which give a sense of serenity amidst the hot weather. Also a tradition in Islamic garden, whereby most Islamic Arabic countries situated in hot arid desert zone, blooms offer a refreshing ambient of hope and life. In this context, the vegetation serves as a screen that buffers the hustle and bustle of the city against the serenity of the region, as a home for the King, a Garden of Eden amidst the throbbing city of Kuala Lumpur. Figure 3.26 The array of plants in the Old Istana Negara. (Lim, 2016)
  • 64.
    42 Iris A perennial flora,elegant and vibrant in its tinge of saffron. It is perhaps the most favored flower after roses and tulips. Originated from the humble foothill of Turkey, it reached the hands of the most powerful man of the vicinity, the King and later the love for Iris spread across the European continents and throughout the world. In the Ottomans era, Iris is a crowned jewel, admired by the royalties, as a symbol of supremacy and status. In Turkish Islamic Culture, Irises are usually associated with funeral tradition. Muslims plant white Irises at the grave of the deceased as a symbol of remembrance and love. Besides, It is also a royal emblem of power and position of the Bourbon Kings of France, including Louis XIV. (Allen, n.d.). In art, Irises appear in many instances, such as paintings by the impressionist such as Cezanne, Claude Monet and Van Gogh. Hibiscus The national flower of Malaysia, a symbol of independence and nationhood. Its influences can be seen at the carvings of the throne and the gilded panels of the Balairung Seri. In Hindu religion, it is used as an offering to Lord Ganesha and the Goddess Kali (Unknown, 2015). Here, it was trimmed into spherical bobs, a subtle shift from the strong emancipation of human control over nature, into gentler nuance of guidance and care
  • 65.
    43 Figure 3.27. Irisin blossom. (Lim, 2016) Figure 3.28 Hibiscus in the vicinity. (Lim, 2016)
  • 66.
    44 Montgomery Palm Honored withits slender upright nature, the species is widely planted in the vicinity, coherent with the verticality of the Former Istana Building. Unlike other palms species such as the traveler's palm and the royal palm with large bushy, feathery leaves, its leaves are considerably small, tapered gently as it reaches the tip, evocative of the elegance of austerity that Islamic teaching urges. Box hedge The box is a stalwart in Western garden, due to its versatile nature of pruning into various forms. Especially in a Renaissance garden where order, symmetry and structure are emphasized. Delicately clipped into hedges, the uniformity of the hedges is not of oppression or dominion, but of order, formality and calmness Figure 3.29 Montgomery palms flanks the descending path towards the field. (Lim, 2016) Figure 3.30 Box clipped into hedges lines the border. (Lim, 2016)
  • 67.
    45 Yew A symbol ofhope, as the tree constantly and faithfully points towards the heaven. Due to its long life, it is often referred to longevity. (Peters, 2011) Hujan-hujan (Samania Saman Leguminosae) A lush foliated tree, reached up to stories high, provides ample sunshades for the vicinity. . Figure 3.31 Yew. (Lim, 2016)
  • 68.
    46 Figure 3.32. Hujan-hujantree. (Lim, 2016) Top: Figure 3.33. Trimmed hedges. (Lim, 2016) Bottom: Figure 3.34. The garden adorned by fountain. (Lim, 2016)
  • 69.
    47 3.2.2.3 Light In Islam,light represents the presence of God, thus is always honored and revered. The Qur'an states "God is the light of the heavens and the earth." Form, space and order can only be defined when light is present, just as life can only be enlightened when God is present. In modern architecture, light is always celebrated. I.M. Pei once stated "In order to make space and form come alive, you need light." Corbusier also manifested that "Architecture is the learned game, correct and magnificent, of forms assembled in the light." (James, 2009). In this hot tropical climate with year long summer, light is carefully portrayed. Natural daylight casts a clear definition of the building's mass and form, of an upright structure, austere and poised, fit for regalia. With the presence of daylight, water features such as lake and fountains cast ever changing reflections of light which brings out the silent beauty of water. In order to filter out the strong direct beams of daylight harnessed to light up the interior of the King's suite, awnings and louvers are installed. From this practice, we can conclude that instead of opposing what nature casts upon, vernacular architecture works within their boundaries and get the most out of it. The result is a beautiful scenery, shimmering in hues of cream and gold under the choreography of light. Figure 3.35. The reflection of light casts a picture on the granite floor. (Lim, 2016).
  • 70.
    48 3.3 Architectural Influences 3.3.1Corbusian International Style The last and most recent architectural style that has influenced the Istana Negara is Modernism. Over the years as Malaysia moves into the 21st century, our architecture has been shaped to follow the advancement of technology, and like many historical sites of Malaysia, additions and extensions have been made to the historical sites, adopting a more modern approach compared to traditional. Whether this is due to convenience or intentional it is unclear, but it does show us the changes made over time. Modernism is a style that revolutionalized the architectural world. The masters, such as Le Corbusier, impacted the era greatly as it opened a whole new door to the industry. The style is significantly different from any other as it is much more simplified, less physically decorated and pure in geometrical language. The main palace wing of the Istana Negara stays true to Palladian and British Colonial, but as it progresses to the Balairung Seri wing, there is a strong sense of Modernism applied. The difference between the styles is starkly obvious and the architectural elements between the two historical styles and the modern one is vast. From the Sky bridge to the entire wing of the Balairung Seri, the exterior façade is of modernistic influence with just a hint of British Colonial in the use of verandas and interior spaces. The external walls also do not have any decorative elements like the main palace wing and majority of the windows remain flush against the walls, creating crisp shapes and giving the Balairung Seri wing a very simple, clean look with minimal decorations. The floor plan itself has a very simple, geometrically pure shape, a feature which is key in Modern architecture. Though the interior spaces can‟t be considered „modernistic‟ because of its lavishly decorated space, the geometrical form of the plan itself is quite linear, and
  • 71.
    49 mainly consists ofa combination of rectangles and squares, keeping the room shape functional. FIgure 3. 36 The exterior of Balairung Building. ( Tey, 2016) Figure 3.37 The skybridge transverse across the building. (Tey, 2016)
  • 72.
    50 3.3.2 Machine Regionalism Abranch of development from the international style, as Malaysian Architecture Critic, Mr. Rashid put with, this language can be depicted as the regional response towards climatic issue, just as the way a machine adapts itself smartly for the user. In the Balairung Seri building, this signature is clearly shown by the usage of arched overhanging louvers around the perimeter of the fenestration, to allow daylight penetration while reducing heat gain. Besides, the use of "egg-crate" louvers filters the glare of direct sunlight while allowing the choreography of light to take stage at the considerably plain exterior according to the shifting time. Figure 3.38 The rear elevation of the building. (Lim, 2016)
  • 73.
    51 3.3.3 Islamic Architecture Dikr Whichmeans remembrance, instill the user to constantly contemplate the words of Allah. The incorporation of Quranic verses in Arabic into the designs as shown in Fig.3.39, is something quite noticeable in the throne rooms of both palaces. In Islam, it is believed that calligraphy is the highest form of art as it is the writing of the divine script and is considered the purest form of religious expression (Hilmi, 2014). As God is given first place in Islam, Islamic architecture should portray the remembrance of Allah. Therefore this remembrance of God is achieved through the repetition of Islamic elements as a constant reminder of God's presence and teachings. Through this, a sense of unity is created in these rhythmic elements revealing the eternal and infinite nature of God‟s essence. An example of this as seen on the interior elevations of the throne room at the old palace, where the pointed arch on the windows is repeated all around. The ceiling of the room also has repetitive elements such as the domes which is also an example of Islamic architecture. Figure 3.39 The pelmet on the Singgahsana depicting the Quranic Verses. (LIm, 2016)
  • 74.
    52 Ikhlas Bears the messageof looking towards the heaven as an expression of submission and conformity to God. The complex is devoid of human and animal motifs as the teaching of Quran in order to avoid idolatry. The Balairung Seri is adorned with Bunga Raya, the national flower of our country. Their Majesty's suites are ornamented with frescos, plasters and paintings of roses, irises, grapes, flora of all kinds. The appreciation towards mother nature is a praised ettique in Quran, as this signifies the humility of mankind under the awe divinity of the Creator. Besides, the design of the garden, resembling the idea of paradise is also inspired by the teaching. With foliages and flora of wide array, vibrantly reminds the family of the grace of Allah that bestowed upon us, gracefully and abundantly. Figure 3.40 The bedroom is adorned with cottage flora. (Lim, 2016) Figure 3.41 The reception area of the apartment. (Lim, 2016)
  • 75.
    53 Haya Which is theconcept of humility, descency and modesty is also highlighted in the building. For instance, the exterior design and the main entrance is not in a frivolously grand scale. The Balairung Seri has a mezzanine that transverse across the double volume hall, which somehow truncated the grand percussion. But as we entered the atrium, the procession slowly unraveled in crescendo, which peaks at the Singgahsana after reaching the inner sanctum. This reflects the concept of Haya, which grandiose is not in par with the phenomenal richness, but lies within the soul of the place. In Haya, privacy of occupants should be protected via creating indirect visual access between guests and family area, by having a transition or double circulation between the public and private zone. This is clearly shown in the Balairung Seri's circulation, whereby the royalty can access the hall through the curtained corridor whereas the only access for the guests is the main entrance door. Figure 3.42 The Singgahsana. (Lim, 2016) Also, Their Majesty's apartment is also in a modest scale, well planned and organized according to the concept of "dual-compartmentalisation," whereby the segregation between male and female is highlighted for a specific lifestyle. For instance, the washroom of His Majesty is separated from Her Majesty's bathroom in concern of the aurah preservation.
  • 76.
    54 Figure 3.43 HisMajesty's bathroom. (Lim, 2016) Figure 3.44 Hers Majesty bathroom. (Lim, 2016)
  • 77.
    55 3.3.4 Victorian Style Aneclectic play of opulence and ornamentations, the style celebrates the mix and match between architectural influences from several eras, such as the Romanesque, the Byzantine, the Renaissance and the Arts and Crafts movement . This style is adopted at their Majesty's suite. with plastered ceilings of Classical Revival, Rococo inspired whiplash adorned mirror frames, Arts and Crafts influenced wallpaper and furniture. It is believed that the style is always regarded as the status quo of the rich. Figure 3.45 Rococo inspired mirror frame. (Lim, 2016) Figure 3.46 Victorian style bedroom. (Lim, 2016)
  • 78.
    56 4.1 Form The annexbuilding of Istana Negara is a tripled-storey building connected to the main building, Muzium Diraja (the Royal Museum). Constructed by reinforced concrete as a primary structure, the building has a relatively simple and solid massing as compared to the main building. The combination of the Islamic architecture and the modernistic expressionism expressed in the building reveal the urge of our nation to catch up the pace with other well developed countries.According to the Islamic architecture, the most striking feature of all Islamic architecture is the focus on the interior space as opposed to the outside or façade. (Imam Reza, 2016) Figure 4.1Exterior view of the annex building (Chin, 2016)
  • 79.
    57 Exterior From the bird'seye view, this building stands as a combination of two simple rectangular massing with a flat roof, orientated with its main entrance facing the east, towards the west wing of the main building. As Islamic architecture promotes simplicity in exterior, only repetitive arched windows and arched colonnades are used. Arches inherited from Roman and Byzantine architecture is very common in Islamic architecture and widely used in religious buildings. Structurally the arch responds to the horizontal and vertical thrust perfectly highlighting the importance of balance in Islamic culture. (Muslim Heritage, n.d) However, the arches in this building are mainly for decorative purposes. In short, the exterior of the building only reveals the International style and Islamic influence but does not tell much of a story behind the building; conversely, the interior of the annex building reveals a more luxurious design approach. Figure 4.2Top view of the annex building (Lee, 2016) Figure 4.3Perspective view of North Elevation (Foo, 2016)
  • 80.
    58 Interior Islamic architecture concepthas been proven once again in the interior of the grand Balairung Seri (the Throne Hall) which stressed on the highly decorated and ornamented detailing, contributing on the aesthetic impact. The lighting plays an important role in making the interior extravagant and lavish as it is also a symbol of divine unity. In the interior, the press room divides the double volume Balairung Seri into two parts, cutting off the grandiose flow towards the center of the main throne hall. However, unlike the main building, the annex building is not symmetrical. From the plan view, although the throne hall is accommodated in the middle of the annex building, the northern and southern wings share a different proportion. (Refer to fig 4.4) Figure 4.4Ground Floor Plan of Balairung Seri(Tan, 2016) Figure 4.5Photo showing press room cutting through double volume throne hall (Lee, 2016)
  • 81.
    59 4.2 Space Planning Nestledon a hill in the capital city of Kuala Lumpur at Jalan Istana, the palace complex includes the Royal component, Formal component, and Administration component, with an area coverage of 11.34 hectares. From the main entrance of this complex, a long palm tree lined driveway made of square tiles will lead one to the main part of the building, Royal Museum Gallery, and later the annex building located in the west wing where the grand Balairung Seri (the Throne Hall) is located. There are two ways to entering the annex building, from the colonnade corridor in the exterior, or from the sky bridge in the first floor that connects the main building together with the apartment of His Majesty and Her Majesty. Figure 4.6Palm tree lined driveway (Lim, 2016) Figure 4.7Connectivity between the main building and the annex building. ( Lim, 2016)
  • 82.
    60 4.2.1 Entrance &Approach Prior to passing into the interior of the annex building, an oblique approach applied to enhance the effect of perspective on the front façade. Rows of columns act as the metaphor of imperial guardian welcoming the patron. The transition of space is enhanced by the visual contrast between the sheltered colonnade corridor with ornate ceiling and the grandiose throne hall. Upon reaching the entrance, the axis focuses on the Singgahsana (the throne), giving an unobstructed view towards it to emphasize its prominence. With special royal yellow curtains as a backdrop - symbol of beholding the supremacy, the majestic of royal family is strengthened, enthralling one while entering. Figure 4.9The Entrance of grand Balairung Seri. (Tan, 2016) Figure 4.8The colonnade corridor. (Foo, 2016)
  • 83.
    61 4.2 Islamic Architecturein Space Planning Essence of Islamic architecture is an achievement of delicate balance between functional and spiritual elements (Hilmi, 2014).The grid organization allows the orderly rows of columns to punctuate the spatial volume and allow a measurable rhythm to be established. The throne hall is the core of this annex building. Columns in this enclosed system divide the 5 rows of ceiling into a „coffered‟ pattern, creating a sense of harmony. This expresses a characteristic of Architecture for Iqtisad, Notion of “Heart”, Harmony. Islamic Teachings also emphasize the remembrance of God (Allah) through rhythmic precision of Islamic Motifs. In addition to that, the concept of Architecture for Dikr is expressed through the repetitive units of windows with pointed arches as well as the motifs below, which is inspired by the national flower of Malaysia, the Hibiscus. Figure 4.10Repetition of ogival window and floral motifs. (Foo, 2016) Figure 4.11The ‘coffered’ ceiling. (Lim, 2016)
  • 84.
    62 4.3 Connection betweenMain Building and Annex Building Although the staircase next to the waiting hall could lead one up to the King‟s and Queen‟s suite, the sky bridge still serves a very crucial function in which it connects the annex building to the main building, offering a perfect view towards the surrounding landscape. In the first floor, it shows the Pass-Through-Space path space relationships. The rooms on the first floor are divided by a series of corridors leading into the pantry, Dining Room of His Majesty and Her Majesty, mirrored finished laundry room, Queen‟s Powder room, Study and Family Room, and finally the Queen‟s Bedroom. Figure 4.13Exterior view from the skybridge (Joshua, 2016) Figure 4.12 Interior view of the sky bridge (Lim, 2016)
  • 85.
    63 Ground Floor In theground floor, to accommodate multiple functions and relationship with the user, the spaces are linked by a dominant room, the grand Balairung Seri (the Throne Hall). The throne hall is defined by quality of light as well as changes in ceiling height rather than only wall panels. In Malay culture, light marks the presence of God and symbolize goodness, while yellow symbolizes royalty, accomplishment and virtue. Ornate ceiling pelmets with hues of gold hung above the double volume Singgahsana are decorated with chandeliers imported from Austria, creating a divine unity, giving a more royal self-experience. Figure 4.14 Simplified Ground Floor Plan. (Foo, 2016)
  • 86.
    64 On the northwing adjacent to the dominant room are meeting room, resting room of sultans and governors, dressing room, living room, and toilet. Whereas the service rooms such as mechanical & electrical room, kitchen, storage room are concentrated on the north. Figure 4.15Chandelier and lighting effect in the atrium of Balairung Seri (Foo, 2016) Figure 4.16 Panaromic view of double volume Balairung Seri. (Joshua, 2016)
  • 87.
    65 First Floor Private spacesare mainly accommodated in the first floor, the King‟s and Queen‟s suite, and semi-private space such as press room and storage room. When coronation or investiture of the honored being hosted, the reporters of different radio station invited will be assigned to different division along the corridor of the press room which are separated by partition. This corridor also direct the workers to the storage room, toilet, as well as the kitchen in the ground floor, basically all the service room in southern wing. Figure 4.17 Simplified first floor plan ( Foo, 2016)
  • 88.
    66 First Floor :King's and Queen's Suite In response to the climate in Malaysia, the Queen‟s bedroom are located at north-west direction. In addition, the west façade are well shaded by the canopy of tree, thereby minimizing the solar heat gained. These rooms are heavily influenced by Victorian style, representing the luxurious and lavish royal lifestyle. Hung above the ceiling in the Queen‟s bedroom are the chandelier and painting of floral and foliage as well as motifs devoid of animals or human figure, showing the incorporation of Victorian style with Islamic culture. Islamic teaching emphasizes gender segregation in sacred and private space. Thus, the bedroom as well as washroom for the King and Queen are separated, showing their respect to each other. In addition to that, to address privacy, the orientation of door is refrained from facing one another. Figure 4.19 Gender segregated washroom (Yeoh, 2016) Figure 4.20 Victorian style interior. (Yeoh, 2016)
  • 89.
    67 Lower Ground Floor Rightbelow the Singgahsana there is the lower ground floor that accommodate a utility room and restroom for both gender. Looking towards the exterior of the building are beautiful landscapes including lake and greeneries that obey the Islamic teachings, creating a calming and peaceful effect to the atmosphere. According to the senior architect Captain David Wee, he thinks that the residential and official areas must be linked rather than knit together. (Masterpiece, 1999) Thereby, the space planning of this building is a result to that, divided into few section: south wing as machinery of the royal household, the centre and north wing in the ground floor as administrative and official areas, whereas north wing in the first floor as residential area. The circulations pattern in this building also designed in such a way that it helps to define the privacy for different rooms, avoiding access of public to the residential area of His Majesty and Her Majesty. However, there is a wasted double circulation at the press room and perhaps, that is the only imperfection in this planning. Figure 4.21 Simplified Lower Ground Floor Plan. (Foo, 2016)
  • 90.
    68 4.3 Singgahsana Singgahsana, theThrone is the symbol of supremacy and of a Government where the king rules with honor and sovereignty. It is elaborately designed to represent a structure befitting the official use of His Majesty in carrying out his royal duties. This is the fourth version of the throne, renovated during the reign of Almarhum Sultan Azlan Muhibbuddin Shah and used by the four subsequent Yang di-Pertuan Agong. Singgahsana is made up of 4 parts, the throne, Dais structure, roof and background. In addition to that, the steps combined together symbolizing the highest status of the National Throne in the country. It is designed by the architect of Jabatan Kerja Raya, Kapt. (L) David Wee and Encik Shahar bin Karim after studying the design of other Singgahsana in Malaysia. The throne is decorated with carved motifs that combine the arabesque features and sprinkled hibiscus motifs, filled with the stately charm of sovereignty, replete with traditional amenities. Figure 4.22Side view of the grand Singgahsana. (Foo, 2016) Figure 4.23 The throne. (Foo, 2016)
  • 91.
    69 Takhta The Malaysian societylooks upon the Singgahasana as a symbol of royalty and honour because it is where Their Majesty are seated. Lined with fine velvet and coated in gold hued copper, it exemplified the status of regalia in grandiose. The carvings embracing the cushion bears the symbol of paddy stalks, which signifies abundance. The backrest is embroidered with the coats of arms of the nation, with another etched on the top, to signifies the constant upholds of the nation's dignity. Figure 4.24 The Seat, known as takhta. (Leong, 2016)
  • 92.
    70 Pelmet As a nationwith multi-racial society, rich in cultural traits and traditional Islamic handicraft, the motifs of siku kelawar and hibiscus, originated from Peninsular Malaysia, Sabah and Sarawak in Singgahsana symbolize the inspiration of multi-racial people of the country and our desire to achieve national unity, peace and prosperity, are the result of the harmonious acculturation from different states thereby highlighting the national identity and projecting the prosperity, harmony and rich multi-racial society. The throne is covered with 2 pelmets (bumbung), the first carries inscriptions of glorious names of Allah. The second carries the inscription of a Quranic verse, which means, " Allah who holds the power of sovereignty, it is You who gives the power to govern to whom You wish and its is You withdraw the power to govern from who You wish." ~ Surah Ali-Imran verse 26. The verse is so inscribed that the words " the power to do govern" are placed right in the middle and forms the center of whole verse. A sentence of Al-Quran is carved on the top of the Singgahsana to symbolize Islam as the national religion in Malaysia, Yang di-Pertuan Agong as Ketua Agama Persekutuan. Figure 4. 25. The pelmet with gilded inscription. (Leong, 2016)
  • 93.
    71 Background carvings The motifof Singgahsana symbolizing the nationality of Peninsular Malaysia with Sabah and Sarawak. The initial ideas of the carvings on Singgahsana was from Pengerusi Jawatankuasa Pertabalan, YB Tan Sri Muhammad Ghazali Shafie. However, Jabatan Kerja Raya, Kementerian Kebudayaan Belia dan Sukan and Institute Teknologi MARA worked together to produce the final arrangement of motif. Inspired by our national flower, the motifs carved by Pakatan Juru Ukir Tradisional are coated in gold color bringing the feeling of royal supremacy to the Singgahsana. Islam states that it is the responsibility of every individual to treat all creation with respect, and God deserved the most respect and dignity among all. Respect begins with loving and obeying the commandments of God and from this respect flow all the manners and high standards of morality that are inherent in Islam. (The Religion of Islam, 2014) In response to this, the throne dais is designed as an upright structure to remind all creations and human beings to constantly remember and respect their creator, Allah S.A.W. Figure 4.26 and 4.27 The background carvings. (Leong, 2016)
  • 94.
    72 Pillars The 7 pillarsrepresents the whole world, consist of 7 layers of sky and earth. Whereas the row of 5 pillars that stand behind the throne represents the 5 principles of National Ideology (Rukun Negara). With these meaningful design concept applied on the throne, besides preserving the interesting Islamic cultural in our country, it also reminds every Malaysian to be proud of our own identity and together stride towards a developed country. Figure 4.28 Closer shot on the carvings. (Leong, 2016)
  • 95.
    73 5.1 Structural 5.1.1 ReinforcedConcrete (RC) Concrete is a mixture of cement, sand and gravel or other aggregate and water. Concrete is easily formed to a wide variable of shapes and sizes. Although concrete has high compression strength, it is weak in terms of tensile strength, therefore it is a brittle material. Because of the lack in tension strength, steels are required to be used in conjunction of concrete for strengthening and reinforcing the tensile strength of concrete. The combination of the material, concrete and steel rebar are better known as "Reinforced Concrete". Advantages of Reinforced Concrete : - Great compressive and tension strength - Better fire resistance than steel Known as the pioneering material in the late 19th century, further escalated during the International style period, thanks to Corbusier, as Perret (n.d.) stated, " concrete frame as an agent for resolving the age-old conflict between the structural authenticity of the Gothic and the Humanist values of classical form " (Figure 5.1) Thus, concrete is being incorporated to the architecture to express a touch on modernism. Figure 5.1 Exterior façade view of the Balairung Seri (Lee, 2016)
  • 96.
    74 Structural Concrete Elements Walls Walls(Figure 5.2) are vertical structure erected to set a boundary from the outside. Slab Slabs (Figure 5.3) are thick horizontal structure found in building floors and roof. The slab carries gravity and lateral loads. Beams Long horizontal structure (Figure 5.4) found supporting a level or roof. Beams transfer loads from the slab to the columns. Figure 5.4Interior ceiling and beams (Lee, 2016) Figure 5.2Exterior wall (Lee, 2016) Figure 5.3Roof slab (Lee, 2016)
  • 97.
    75 Columns Columns (Figure 5.5)are vertical structures that transfers loads from above to the foundation. Here, the columns are fluted, due to the preference in the era, whereby fluted columns had substituted Tuscan columns, where stretches of flutes exemplifies its verticality, suggesting formality. Footings Footings (Figure 5.6) are the foundation of the building. It transfers the load from above and distributes it to the ground. Figure 5.6Concrete Foundation (Lee, 2016) Figure 5.5Columns at the porch (Lee, 2016)
  • 98.
    76 In (Figure 5.7),verticality is emphasized with the usage of columns throughout the building. View of the east elevation consists of slender vertical columns, tapering the flow from lower ground floor towards the roof.. (Joshua, 2016) In (Figure 5.8) Walls are texture sprayed to give a rough finishing which can withstand weathering better than smooth surface and also to disperse sunlight smoothly to reduce glare. (Tey, 2016) Figure 5.7View of the east elevation consisting of tall vertical columns (Lee, 2016) Figure 5.8Walls spray painted to give a rough finishing emphasizes the horizontal contrast between the smooth surface (Tey, 2016)
  • 99.
    77 5.1.2 Steel In the19th century, steel is popularized at the intervention to replace the brittle iron, allowing human to build higher inventing the skyscrapers. Steel is a type of alloy made up of the composition of carbon and iron. The element, carbon gives a unique strength and other properties that are suitable for structural material in the building industry. In the case of the Balairung Seri, steel rebar are used in conjunction with concrete to compensate for the weak tensile strength of the concrete by increasing the tensile resistance. These are shown in (Figure 5.9) and (Figure 5.10). Advantages of Reinforcement Steel (Rebar) : - Good strength, resist shear, tension and compression forces - Works well with concrete - High modulus of elasticity , high degree of stiffness Figure 5.10Arches made with the usage of reinforced concrete (Lim, 2016) Figure 5.9Diagram on concrete reinforced with steel rebar (Lee, 2016)
  • 100.
    78 Steel Trusses Prefabricated steeltrusses are found in the roof of the Balairung Seri porch. The steel trusses are prefabricated then transported to site and bolted. This is shown in (Figure 5.11).In the porch roof, timber is used as rafters in conjunction with the prefabricated steel trusses. This method will ensure a lightweight and strong roof. This is shown in (Figure 5.12). Figure 5.11 Steels are welded together (Lee, 2016) Figure 5.12 Steel trusses and timber are seen supporting the structure (Lee, 2016)
  • 101.
    79 5.1.3 Timber Unlike steeland concrete, timber is not made of homogenous structural properties. It does not behave equally in all directions when forces are applied. It is cost saving and less time consuming to build with the implementation of prefabrication. In the Balairung Seri, no timber columns were found to be the structural support for the building except for the timber rafters found in the porch roof. Initially, timber was thought to be used as structural columns for supporting the levels in the interior between levels. However in (Figure 6.13), proved that the timber columns within the room are mainly used for decorating the interior and do not provide any structural support for the ceilings. Advantages of Timber : - Stronger than other construction materials in terms of strength to weight ratio - Economical, durable, lightweight and easy to work with Figure 5.13 Rotten interior timber column and a badly damaged wall at the edge of the meeting room (Lee, 2016)
  • 102.
    80 5.2 Finishing Figure 5.14.Finishing diagram at Ground level. Most of the finishing are focused on public area. (Lim, 2016)
  • 103.
    81 Figure 5.15. Finishingdiagram at First level. Most of the finishing are focused on the suites (Lim, 2016)
  • 104.
    82 5.2.1 Exterior It isevident that a great attention to detail and quality was paid to the finishing of the palace‟s rooms. The most elaborate finishing can be found in the main throne hall as well as in the rooms of the royal apartment. The working areas and spaces relating to servicing such as the banquet kitchen are not decorated and finished with their function in mind rather than aesthetic considerations. Plaster rendering The facade is rendered in plaster on top of the concrete (Figure 5.14) and brick elements. A slight difference in the applied rendering technique results in a repetitive pattern of rough and smooth finishes, which breaks the monotony of the relatively plane elevations. Polished Granite The two steps (Figure 5.15) leading from the colonnade floor level into the main throne hall and into the holding room are covered with polished granite slabs of ¾ Inch thickness. Figure 5.16Rendered plaster on top of the concrete (Tey, 2016) Figure 5.17 The steps (Lim, 2016)
  • 105.
    83 Granite tiles The floorof the colonnade (Figure 5.16) as well as the planter boxes adjacent to the palace buildings are tiled in small, homogenous square tiles of 10cm x 10cm, which is a continuation from the tiled floor in front of the main palace building. The tiled surface ends at the southern end of the colonnade. From that point onwards, a tarred road surface continues. Concrete roof tiles The roof of the colonnade (Figure 5.17) is covered with standard size painted concrete roof tiles. Figure 5.19 Roof of the colonnade (Lim, 2016) Figure 5.18 Floor of the colonnade (Lim, 2016)
  • 106.
    84 5.2.2 Interior Timber Panels Ascan be seen in the photographs, the main throne hall is elaborately decorated using fine materials and workmanship. Most noticeable are the wooden panels and carvings decorating the length and width of the throne hall. From older documents it appears that the main panelling was made from a darker wood (Figure 5.18) possibly suggesting the use of local tropical hardwood. However whether the panels are made of solid timber or real wood veneer could not be established since they had been painted with white lacquer. The carvings placed on top of the main panels (Figure 5.19) are made of gilded hardwood and since they were made by craftsmen from Kelantan it is likely that the wood is also from a local source and of good quality. No joinery is visible in the carvings and trimmings, further suggesting that they were made from single pieces of timber. Figure 5.21 Roof of the colonnade (Lee, 2016) Figure 5.20 Old balairung in dark wood panelling (Lim, 2016)
  • 107.
    85 Timber panel withembroidered fabric The walls of the private rooms (Figure 5.25) are covered in elaborate paneling. In a damaged area of the meeting room paneling it could be observed that the paneling is installed on a timber frame that is fastened into the main wall. The elements of the paneling consist of block boards, real wood veneer as well as solid hardwood trimmings. The main panel surface (Figure 5.26) are lightly cushioned and covered with Viennese, woven material with a high thread count and elaborate patterns. Figure 5.23 Detailing on ceiling (Kong, 2016) Figure 5.22 Private room (Tey, 2016)
  • 108.
    86 Plaster Ceiling The elaboratedetailing is continued on the ceilings (Figure 5.20), which are given a coffered appearance by cladding the ventilation ducts that traverse the throne hall in regular intervals in plasterboards and installing a plasterboard ceiling at the upper of the ducts level. The plasterboards (Figure 5.21) appear to be of good, thick quality as no sagging and misaligned joinery can be seen. The plasterboards are further decorated with gilded moldings. It could not be established whether these were made of stucco, plaster, solid timber trimmings or any other material. Carpet The entire floor of the throne hall is carpeted. The plush carpet (Figure 5.22) was imported and custom designed to fit the room. Figure 5.24The plasterboards inside of the throne (Lim, 2016) Figure 5.25 Plush carpet (Lim, 2016)
  • 109.
    87 Parquet Flooring Parquet flooringwas installed in the sky bridge (Figure 5.27), the corridors (Figure 5.28) of the private quarters as well as the bedroom, personal dining room, powder room and study room. Detailed intarsia are inlayed into the parquet floors in some areas, with arabesco motifs. Figure 5.26 Parquet flooring in the sky brige (Lim, 2016)
  • 110.
    88 Marble The bathroom walls(Figure 5.30) and floors in the private quarters are tiled with marble tiles, which were laid with a very thin grouting line. All fixtures such as soap dish holders, taps, and rails were gilded. Mirror Many of the cupboard doors (Figure 5.29) are paneled with mirrors to create an infinity view. In Malay tradition, it is believed that mirror can prevent ominous affairs Figure 5.28 Mirror finished cabinet doors (Lim, 2016) Figure 5.27 King’s bathroom (Lim, 2016)
  • 111.
    89 6.1 Columns Columns aredefined as rigid and relatively slender structural members designed to support compressive loads. This freestanding monument can be used as a decorative component as well as supportive structure in a building. A column basically made up of 3 parts, the capital, shaft and base. In the year of 1980s, concrete and reinforcement are known as the modern building material thus widely used. Figure 6.2 Difference between structural and decorative column (Tey, 2016) Figure 6.1 members in a column (Tey, 2016)
  • 112.
    90 Structural : Doric Columns Alongthe corridor, not all the columns are structural. Figure shows the structural Doris columns that is standing alone. Among the columns that come in pairs, some are only for decorative purpose. Engaged Columns Engaged columns are columns embedded in the wall but leaving partially of it projected from the wall. In 1980s, reinforced concrete are widely used in construction. Engaged concrete in this case could be seen from the façade, giving a measurable rhythm to the building. Figure 6.4 Engaged column exposed in façade. (Eng, 2016) Figure 6.3 The Doric Columns supporting the porch. (Eng, 2016)
  • 113.
    91 The construction ofthe Doric columns can either be pre- casted or cast-in-situ, but to speed up the construction time, the columns are most probably pre-casted. First, the mold of the fluted columns are prepared, usually applied with a coat of bitumen for easy detach after the cast is done. Then, a core is placed at the center. Concrete are then poured into the cast and left to cure. Columns are usually casted in segmented drums for easy transport. After the drums are completely cured, the core is detached and the drums are assembled accordingly, cleaned and mortared to sealed off the gaps between the drums if preferred and applied with a coat of paint. Figure 6.5 Column part terminologies. (Tey, 2016)
  • 114.
    92 Decorative Tuscan Column Thecolumns found in the Grand Atrium of the Balairung Seri are known as Tuscan column influenced by Roman architecture. Tuscan is one of the oldest and most simple architectural form practices in ancient Italy. It is well- known for its plain design without any carvings or ornamentation. The construction of these columns are ready made by polyurethane, ready to be finished by paints. It is hollow and light, easy to be installed. Figure 6.7Drawing showing relationship of structural and decorative column in the throne (Neoh, 2016) Figure 6.6 Parts of Tuscan column (Tey, 2016)
  • 115.
    93 6.2 Roof There aretwo types of roof in Balairung Seri which include corrugated metal pitched roof and pyramidal concrete tile roof. The parapet of the main building and the annex building is connected by the sky bridge and one can access through the expanded metal as shown in figure. On top of the annex building are two corrugated steel pitched roof, gable and shed roof. Two sloping gradient joint by the ridge cap form the gable roof at the east, extends over the concrete wall to give overhangs. Figure 6.8 Bird eye view of annex building roof. (Lee, 2016) Figure 6.9 Expanded metal walkway between the roofs of Main and annex building. (Lee, 2016)
  • 116.
    94 In general, theinner frame are known as ladder frame, consists rafter to allow fixing of standard corrugated metal sheet. Beneath the metal roof is the concrete gutter. The run of the rafter is taken from the inside face of the top plate on the higher wall to the outside face of the plate on the lower wall. When figuring the overhang at the higher wall, it‟s included the thickness of the stud wall and the rise it the vertical distance from the top of the lower plate to the top of the higher plate. Figure 6.11 Concrete gutter. (Foo, 2016) Figure 6.10 Illustration showing concrete gutter section and fixing on metal sheet (Foo, 2016)
  • 117.
    95 Lie above thecorridor are the concrete tile roof with valley gutter. A finishing trim called a barge board is nailed to the last rafter. This barge board is sufficiently wider than the rafters to cover the entire end rafter including the tilting fillet. A soffit is then fixed to the underside to match the soffit under the eaves. The fascia can be mitered to the barge board at the foot while the top of the barge board at the apex of the roof is mitered to the matching barge board on the other side. Figure 6.13 Concrete tile roof & concrete gutter.(Lee, 2016) Figure 6.12 Section of concrete tile roof.(Neoh, 2016)
  • 118.
    96 7.1 Columns Columns arebasically cylindrical structures that supports the imposed load of a building. The columns at the Balairung Seri are Doric and Ionic. The columns can be seen easily along the pathway towards the entrance of the Balairung Seri (Figure 7.1). The walkway outside the main entrance is shaded and supporting the structure are 28 Doric columns that consist of both single and paired columns. The placements of the columns are shown in (Figure 7.2). The placement of the Doric columns are mirrored when seen from plan. Even on both sides, the columns give the structure balance and a sense of symmetry. The columns are also placed in a singular motion providing a sense of direction for users to follow leading to the main entrance. Figure 7.2 Placement of columns (Tey, 2016) Figure 7.1Single and double columns (Lee, 2016)
  • 119.
    97 In the BalairungSeri, the columns are long, cylindrical and thick in diameter. Together with the ornaments and arches in the Balairung Seri (Figure 7.3), the cylindrical columns add to the sense of royalty and greatness as size defines how profile the place is during its period of time. The columns are repeated from the entrance to the throne area (Figure 7.4) inside of the Balairung Seri and this portrays a sense of stability and strength of the building. Figure 7.3Columns in Balairung(Lee, 2016) Figure 7.4Throne area inside the Balairung (Lee, 2016)
  • 120.
    98 7.2 Pilasters The pilastersfound in the meeting room (Figure 7.5) of the Balairung Seri is Ionic. The pilaster is repeated throughout the room and can be seen bent in certain corners of the room especially near the restroom entrances. The Ionic pilaster adds to the sense of unity of the meeting room. The pilasters in the Balairung Seri (Figure 7.6) was designed based on functionality. Due to the immense weight of the building and the size of the columns, the pilasters are designed to spread the weight evenly throughout to avoid any unstable factors. Also, this adds to the sense of strength the building intend to portray in conjunction with the presence of royalty. Figure 7.5Pilaster in meeting room (Lim, 2016) Figure 7.6Pilaster in Balairung Seri (Lim, 2016)
  • 121.
    99 7.3 Doors The doorswithin this royal building have significant designs that resemble those from the Victorian era and as for most doors to be exact are of Palladian style. Certain characteristics that make up the Palladian-styled doors are elliptical fanlights or in some cases also adorned with sidelights, both covered with clear or stained glass panels. These types of doors are located mainly at the main entrances or doorways and are found in Palladian-styled villas.(Figure 7.7) shows the door King and Queen‟s suite while (Figure 7.8) shows the entrance door to the main Istana Negara building. Figure 7.7 Entrance of to the King and Queen’s suite from the sky bridge (Lee, 2016) Figure 7.8Entrance to the main Istana Negara building (Yeoh, 2016)
  • 122.
    100 These doors showclear symmetries as being the characteristic of Palladian architecture. The only slight modifications to the doors that are similar to those of the Palladian style is the absence of the pediment of a typical Palladian-styled door. The doors within the Balairung Seri (Throne Hall) have been altered slightly by vernacular and cultural designs, hence leading to a varied door with similar characteristics to the Palladian doors. Most doors which have the pediment removed still maintain the pilasters at the both sides of the door. (Figure 7.9) shows a smaller type of wooden pilaster without the pediment on the top. Apart from the absence of the pediment is the cultural and Islamic influence which have replaced the Victorian human motifs with the floral motifs. The usage of floral motifs (Figure 7.10) is due to the influence of Islamic art. Figure 7.9 Entrance to the Holding room of the Balairung Seri (Lee, 2016) Figure 7.10Wooden carvings and floral motif which are painted gold as ornamentation (Lee, 2016)
  • 123.
    101 Most of thedoors within the Balairung Seri and the Royal bedrooms are 3-paneled doors, ranging from equal sized panels to panels with the ratio of 8:1:3. Most doors located within the Royal living areas are simple and clean whereas doors which lead to the Balairung Seri and the meeting room are ornamented with floral motifs (Figure 7.11), showing the royal status towards the people. Apart from the decorations, doors which lead to main areas are of wooden double leaf doors (Figure 7.12) creating a grand entrée into each main space. This is clearly shown by the double doors that lead into the Balairung Seri from the porch. Since the construction of the Balairung Seri, almost all doors are still in a good condition only with a few doors having a missing door knob. In total, there are 15 prominent types of doors located within the annex building of the Istana Negara. Figure 7.11Wooden double doors with floral carving, leading to the Meeting Room (Tey, 2016) Figure 7.12Simple wooden double doors, leading to the Queen’s bedroom (Lee, 2016)
  • 124.
    102 7.4 Windows A windowis an opening that is used for the admission of light, sound and air. It is built on a door, the wall or sometimes the roof. It is normally transparent and sometimes translucent. Windows are often arranged also for the purposes of architectural decoration. The windows in Balairung Seri are pointed arch window (Figure 7.13) which is one of the defining characteristics of Gothic architecture. The ornaments of windows in Islamic architecture makes use of specific ornamental forms for example mathematically complicated, elaborate geometric and interlace patterns. These are the common features which serve to decorate a building and these Islamic ornamentations are symbolizing the infinite and the nature of the creation of Allah (the god). Figure 7.13Pointed arch window inside Balairong Seri (Lee, 2016)
  • 125.
    103 (Figure 7.14) showsthat the floral ornamentation also known as Ataurique in Islamic architecture, these designs composed of various leaves and flowers. They are having diverse patterns, such designs are produced separately, jointly, convergent and embracing. In this case, the decorative unit is composed of a group of overlapping, intertwining, symmetrical and regularly repetitive floral elements between each others. The hibiscus in the middle also represented the national flower for Malaysia. Figure 7.14Floral ornamentation in Balairung Seri (Lee, 2016)
  • 126.
    104 7.5 Ceiling A ceilingis considered an interior surface that covers the upper limits of the room. The most common materials used for ceiling are plaster or plasterboard which had been use for centuries and drop ceilings which are ceilings that is suspended below a pre-existing ceiling. There are other types of ceiling such as groove ceilings, coffered ceilings, concrete ceilings etc. The purpose for having ceiling is for insulation and fire-proofing, sometimes for decorative purposes. Coffered Ceiling The ceiling of the Balairung Seri is lined up with repeated Coffered ceiling panels, gilded and ornamented with geometrical and floral motifs. The repetition is an Islamic teaching, in remembering the words and presence of God always. Figure 7.15 Coffered ceiling at Balairung Seri. (Lim, 2016)
  • 127.
    105 Plasterboard Ceiling The Ceilingin the dark room (Figure 7.15) of the Balairung Seri is plasterboard ceiling which are easy to maintain. The ceiling doesn‟t have any complex design on it but rather more on the simplistic approach. The ceiling in the room is plain but has plastered coving around the borders. These covings (Figure 7.16) are arranged in uniform order to maintain the balance of the overall outlook of the ceiling and also to give off a sense of simplicity and pristine look. Figure 7.16Covered skirting arranged in and orderly manner (Lee, 2016) Figure 7.17 Plasterboard ceiling with coving surrounding (Lee, 2016)
  • 128.
    106 7.6 Lighting The word„chandelier‟ originates from the French word „candere‟ meaning “to be white, glisten.” (Ling, 2015) From its beginnings it was associated with wealth and power and a burning symbol of success and social standing. (Alan, 2011) To exhibit a level of prestige as a grand palace, in this Istana Negara chandeliers are hanging in nearly every room, including dining rooms, bedrooms and so on. (Figure 7.17) shows the chandelier used in the Balairung Seri. Through centuries of development, the design of chandeliers evolved from the primitive brass or silver chandeliers that reflects the light through its polished metal surface to rock crystal and crystal glass chandeliers that reflects and refracts light through its pristine crystalline gem stones that adorned it. Crystal Glass Chandeliers Crystal glass chandeliers with 15 light arms from Vienna are used in the Balairung Seri to provide a sense of elegance, together with the elaborately ornamented ceilings and wall panels. The reflection and refraction of glass amplifies the grandness of the space in a warm aura. Figure 7.18Chandelier of the Balairung Seri. (Lee, 2016)
  • 129.
    107 Brass Chandeliers Polished BrassChandeliers are installed at the ceiling of sky bridge and the Queen's bedroom. The chandeliers are usually used for night illumination as during day time, the corridor is showered with ample daylight and the windows at the bedroom allows daylight to illuminate the space. Thus, brass chandeliers are opted due to its smooth and warm reflection of light casted by metal surfaces, giving the space a soothing ambience of serenity when night falls. Figure 7.19 Chandelier in the sky bridge (Lim, 2016) Figure 7.20 Chandelier at the bedroom with motifs of blooming roses (Lim, 2016)
  • 130.
    108 7.7 Wooden Carvings Theartistic essence of the Malay community flows through the entire Balairung Seri, strongly shown by the numerous designs of wood carvings and floral motifs, or also known as arabesque, throughout the building. Wood carving was developed as a form of art within the Malay community beginning from the east coast of the peninsular Malaysia such as Kelantan and Terengganu. (Figure 7.19) shows a panoramic view of the throne along with the heavily adorned wall. As such the numerous amount of wood carvings found within the building states as a reminder for the ruler of the country to not forget about the roots of the Malay community and the history that made the nation standing with pride. Henceforth, 60 master craftsmen from Kelantan were hired to produce the intricate carvings to be fitted within the Balairung Seri. Figure 7.21 A panoramic view of the throne along with the heavily adorned wall (Lee, 2016)
  • 131.
    109 The panels ofwooden carvings above the throne and on the adjacent walls adhere to the recurrent theme of Malay art where there will be a certain arrangement and configurations of motifs and patterns. The repeated motifs of the seeds and flowering tendrils depict the abstract manner of bursting forth with life and energy. The flower in the middle reveals the beauty and grace while the reversed image of flowing vines creating a mirrored motif symbolizes both the beauty and majesty of the divine (Farish and Khoo, 2003). The explanation of the abstract art is further elaborated and shown in (Figure 7.20) where the same recurring theme is found throughout the room. The carvings are inspired by our national flower, the Hibiscus, to portray the nation. Thus whenever any ceremonies are held by His and Her Majesty, the rulers are not just surrounded by ministers and royalties but also surrounded by the aura of the people symbolized through the national flower. Vertical axis line in the centre of the motif giving a sense of balance and symmetry. On this axial line, the right part of the motif is mirrored to the left. Twig Source or BungaPunca Leaf Flowering Tendrils Figure 7.22A closed up image of the wooden carved panels below the coffered windows (Lim, 2016)
  • 132.
    110 Apart from theflowers, the most prominent recurrent design pattern is the unending recurrent spiral of the tendrils and leaves which is known as the awan larat, roughly translated as „meandering clouds‟. The awan larat design is in form of spiral which begins from a fixed centre, the Hibiscus flower, and moves outwards as it expands. The significance of the spiral is the representation of the unending ebb and flow of life (Farish and Khoo, 2003). Apart from it also symbolizes excitement, alive and fresh instead of being wilted as it includes elements of harmony. The centre point of origin is represented by the unity of God itself, creating an abstract meaning of God being the centre of the universe and the axis of which lives depend on. Figure 7.23 Wooden patterns carving on the top of the coffered windows (Lee, 2016)
  • 133.
    111 8.1 Site Context Figure8.1. Aerial View of Old Istana. (Google Maps, 2016) Former Istana Negara The 11 hectares old Istana Negara is tucked amidst a hilly terrain, with forest embracing the context, a perfect emblem of the good Feng-shui in the Chinese tradition, due to its original Chinese owner. In Feng Shui, it is believe that a building built under the backdrop of a hill can auspiciously protects the residences from ominous affairs. Figure 8.2. Aerial View of New Istana. (Google Maps, 2016) New Istana Negara The new 97.65 hectares Istana Negara is perched on Bukit Damansara suggesting its authority along Jalan Tuanku Abdul Halim (figure 8.2). Here, Instead of towering forest, flat manicured vegetation tumbles across the land. Offering a view towards the throbbing city around the vicinity.
  • 134.
    112 8.2 Space Planning Figure8.3. Aerial View of Old Istana. (Google Maps, 2016) Former Istana Negara Aligned with the Qibla line, facing Mecca, the Balairung Seri of old Istana Negara is located at the east wing of the compound symbolizing the spirit of sun, rising from the east.. In the former Istana Negara, the separation of the public and private zone are not demarcated in a horizontal planning, instead it is separated through vertical floors. New Istana Negara In the New Istana, a clear separation of public, and private zone is shown, which the Balairung Seri, considered as a public area is located at the East wing, with other public zones such as Banquet Hall and Surau. As we travel towards the opposite wing, the space turns into more private zone, such as the Guest Lounge, Royal Office and Royal Suites. Figure 8.4. Aerial View of New Istana. (Google Maps, 2016)
  • 135.
    113 8.2 Architectural influences 8.2.1Exterior Former Balairung Seri As shown in figure 8.3 differs slightly in comparison to the main building, it leaves behind the British Colonial and Palladian influences seen in the main building to take on characteristics of Modernistic Expressionism and Primitive Regionalism that were heavily influenced by the Corbusian International Style which had begun to spread globally at the time. This change is quite significant in the Malaysian context as the nation had just gained independence and was in seek of its own architectural identity. Thus, International style is adopted as the expression of an recognized nation in the international platform. Figure 8.5. Exterior of the main building with the East wing on the right.(Lim, 2016)
  • 136.
    114 New Balairung Seri Theconstruction started in 2007, from an exterior view, the building is an amalgam of Islamic architecture and Modernism, carrying the metaphor of staggered sirih (betel). Unlike the old Istana Negara, whereby the complex is divided into two sections of different style due to its different construction period, the entire complex speaks of one language, symmetry in the central atrium of castellated onion domes, flanked with two side wings of gabled pitched roof in tiles of violet. From the gateway (figure 8.5), the entire complex is framed gracefully with the golden dome situated right at the center. From a cultural and historical view, it is clear that the New Istana Negara is planned accordingly in a single phase, to demonstrate the affluence of the land, after marking its 50 years of independence since 1957. Figure 8.6.. Exterior of the New Istana Negara. ( My Sumber, n.d.) Figure 8.7. The grand gateway view. (Bretuk, n,d,)
  • 137.
    115 8.2.2 Interior Former BalairungSeri Upon entering the Balairung Seri at the Old Palace, one is able to witness the double volume room decorated in rich hues of yellow – the colour of royalty in Malaysia. Following the teaching of Haya (modesty), the atrium is divided into two sanctum by a traversing mezzanine. Patrons experience an atmosphere of serenity and honor as they are led up to the Singgahsana (Throne) that stands in beauty and grandeur at the head of the room as shown in figure 8.6, through the lead by the colonnades and arched windows. The space is lit up by 17 chandeliers in a soft warm hue. Floral motifs having originated from Peninsular Malaysia, Sabah and Sarawak, decorate the inner wall panels of the room as well as the Singgahsana and are fine examples of traditional Malay handicraft indicating that the country is a proud nation with strong cultural and traditional values. Figure 8.8. Interior of the Balairong Seri at the Old Istana Negara.(LIm, 2016)
  • 138.
    116 New Balairung Seri TheBalairung Seri located in the new palace (figure 8.7) too is golden hue and is influenced by vernacular Malay architecture in a modernist approach. Unlike the old Balairung Seri, whereby the atrium is divided into two sanctum, the outer and the inner ones, the Balairung Seri in the New Istana is a single undisrupted flow of grandiose, straight directing sense of awe towards the Singgahsana. The timber panels with intricate carvings are substituted with ruby embroidered fabric panels. Without columns and arches, the grand progression is enhanced by the rows of chairs. Besides chandeliers, fluorescence lightings are incorporated. The carved motifs on the throne are a combination of Arabesque designs with the incorporation of the Bunga Raya (Hibiscus) which is the national flower of Malaysia. Very much like the motifs carved onto the throne at the old Palace, these motifs too are also coated in gold creating a sense of glory. (ref) Figure 8.9 Interior of the Balairung Seri at the New Istana Negara (Bernama, 2012)
  • 139.
    117 8.3 Details Ceiling Former BalairungSeri Consists of repetitive panels of geometrical and floral motifs, gilded to form a contrast against the cream white panels. The ceiling is coffered to enhance the acoustic circulation and heightens the elegance of the space. New Balairung Seri The ceiling is a relatively minimalist approach as compared to the former Balairung Seri, without ornamentations, but gently curves at the central axis to points out its prominent. Only certain part with chandeliers have covings plastered. Figure 8.10 The coffered ceiling. (Lim, 2016) Figure 8.11 The New Balairung Seri's ceiling. (Lim, 2016)
  • 140.
    118 Carpet Former Balairung Seri Thecarpet design is influenced strongly by rococo influences, with sinuous floral and elaborately decorated whiplash motifs. From top view, the carpet is specially designed to highlight the central percussion towards the throne, whereby the central axis strike a contrast plain yellow band against the intricate ruby patterns flanked by the side. New Balairung Seri Similar as the former Balairung Seri, the emphasis is on the central axis, where the King and Queen will walk towards the SInggahsana. At this part, the carpet bears motif of delicate four petal flora offset by plain yellow, flanked with intricate patterns where the rows of seats are placed. Figure 8.12 The carpet in the former Balairung Seri. (StatcFlick, n.d.) Figure 8.13 The minimalistic carpet in the New Balairung Seri. (Fadzil, 2011)
  • 141.
    119 Lighting Former Balairung Seri Thehall is mainly lit up by 12 crystal glass chandeliers imported from Vienna. Apart from the reflection, refraction of the glass created an enriched lighting experience to the hall, warm and soft, without compromising its grandness. New Balairung Seri The hall is lit up by chandeliers and indirect fluorescent lightings. The chandeliers are made locally by craftsmen to suit our national identity. The chandeliers carry the metaphor of obor-obor (jellyfish) due to its nature of adapting to the natural surrounding aptly, without losing its integrity. (JKR, n.d.) The fluorescent lightings are hid underneath the ceiling panels, to allow the glow to gently highlight the grand progression of central axis. Figure 8.14 The chandelier in Former Balairung Seri. (Lim, 2016) Figure 8.15 The obor-obor inspired chandelier. (JKR, 2011)
  • 142.
    120 Panels Former Balairung Seri Thepanels in the Balairung Seri is intricately crafted on timber panels with Bunga Raya motifs, painted in gold and silver to enhance its regal characteristic. Current Balairung Seri Unlike the panels in former Balairung Seri, the panels are left untouched by paint brushes, only lacquered to show the original colour of jati. The motifs are of Bunga Raya as well, but is using the technique of tebuk tembus bersilat, which bored across the timber, as if it is a piece of embroidered lace, a challenge to the nature of wood, which usually depict itself as a hard material, but being sculpted into a delicate lattice. Figure 8.16 The bunga raya inspired panels. (Lim, 2016) Figure 8.17 The tebuk tembus bersilat timber panel. (JKR, 2011)
  • 143.
    121 Singgahsana Former Istana Negara Theformer singgahsana is of an upright structure, with pelmets carrying the glorious names of Allah. The throne seat is carved with paddy stalks to resemble riches and abundance. Current Istana Negara The new istana carries the similar identity of the former Singgahsana, but with further elaboration at certain details. First is the glorious names of Allah is increased to 99 to heightened its prominent. The throne seat's paddy stalks is also carved to a higher precision to emulate the reality, whereby the paddy stalks are crafted to looks as if it spreads sideways. Also, there is an addition of Quranic verse below the Coats of Arms of Malaysia. Figure 8.18. The Old Istana Negara Balairung Seri. (Yeoh, 2016) Figure 8.19 The former Singgahsana. (Bernama, 2012)
  • 144.
    122 9.1 Structural Observationsand Recommendations General Observation Overall, the structural condition of the Balairung Seri is in good quality. The overall exterior does not have obvious defects or damage. It can be saved to say, the building is well maintained. However, based on inspection, there are evidence of minor damage on the exterior while they are a severedamage on the interior part of the Balairung Seri especially the meeting room. 9.1.1 Roof Cement Tile Roof The roofing is in a fair condition. There are not any visible evidence active leaks or need for immediate repair. Figure 9.1 Growth of wild on the roof tiles. (Yeoh, 2016)
  • 145.
    123 However, there afew liabilities that may affect the roof tiles in the future. In this case, there are wild plants growing at the side of the roof tiles (Figure 8.1). As for now, the plants are under control and is not affecting the roof. Although this can be a major problem in the future if the plants are monitored regularly. This is because uncontrollable growth of plants can lift off roof tiles and grow through sealing sheets. This can drive rain water to potential leaking spots. It is advisable to get rid of the plants before it can cause any damage, by getting rid of the plant reduces maintenance work. Corrugated Zinc Roof Evidence of rusting on the corrugated roof zinc is visible due to weather (Figure 8.2). In order to avoid rusting, zinc roofing manufacturers recommend the use of zinc panels that has protective coating on their underside portion or installing a drainage layer under the roof to ensure proper ventilation of moisture. Figure 9.2 Rusted Roof could easily cause leakage. (Yeoh, 2016)
  • 146.
    124 Roof finishing There aresigns of unpleasant damp patches visible (Figure 8.3), this leads to dampness problem such as paint peeling, damp stains on the ceiling below. It can be said that, the reason why this occur is because of the improperly fitted drain pipes or blocked outlets. Water accumulation and subsequent pent up water pressure to improperly slop terraces may also cause this damp patches to arise. To avoid further problems, it is important to ensure that the drain pipes are not clogged and there are enough outlets for the water to drain off. Other than that, sealing the gaps on the parapet walls using a suitable sealer may also avoid damp patches. Figure 9.3 Damp patches (Yeoh, 2016)
  • 147.
    125 9.1.2 Wall Failure ofcoating to properly adhere to surface causes the plaster paint to flake off can be seen at damp corners of the exterior walls (Figure 8.4). Therefore, the most suitable way to fix this is to scrape off the new paint that has not keed into the plaster and give it a coat of 50% water, 50% paint and then two cots of normal emulsion. This will seal the problem area and protect it from further damage. Dark green and black spots are noticed on the exterior cement wall below the arch windows of the sky bridge (Figure 8.9) and the ceiling of the porch (Figure 8.10). The rainwater dripping from the arch windows and lead to the growth of algae. Water stain and algae are spotted on the ceiling of the porch. Water stain which appears at the ceiling along the corner is caused by rainwater leakage. Algae destroy the quality of the paint and the appearance of the wall. Figure 9.4 Algae on the wall of sky bridge. (Yeoh,, 2016) Figure 9.5 Algae on the ceiling of the porch (Yeoh, 2016)
  • 148.
    126 The moderate toheavy rainfall cause the exterior wall to be damp and produce a moisture environment for the algae to grow. After exposing to the sun, the algae will turn into black spots (Isobar, n.d.). Hence, coating of fog line paint is advisable in order to retard moss or algae from growing on the surfaces. In order to avoid the growth of algae, regular chemical cleaning maintenance is required to preserve the appearance of the wall. Figure 9.6 The exterior wall with algae growth. ( Yeoh, 2016)
  • 149.
    127 9.1.3 Column The columnis located at outdoor (Figure 8.12) hence the probability of exposure to rain is higher. The higher the air humidity, the higher the exposure of the columns to the moisture. When the surface exposes to moisture repeatedly, the dampness will seep under the paint. Eventually, the paint starts to peel when moisture gets between the paint later and the surface underneath (Lofgren, n.d.). The chemicals in acid rain will increase the rate of paint peeling process. This is not major concern but it affects the aesthetic value of the building and is unpleasant to the eyes. Thus, repainting is required in order to maintain aesthetic value of the building. Figure 9.7 Column at the south elevation. (Yeoh, 2016)
  • 150.
    128 9.2 Finishing Observationsand Recommendations General Observation On the whole, the condition of the Balairung finished are in good condition. Based on visual inspection, the overall finishing does not have major damage but typical flaws were observed. 9..2.1 Exterior Ceiling There is evidence of water leakage in ceiling (Figure 8.6). This causes a bulge in the plaster ceilings, this often indicates a large amount of pooled water. There are possibilities of significant amount of water damage and running the risk of mold growth. The source of leak has to be eliminated to repair the water damaged ceiling. In order to fix the problem, drying the areas above and below the water contamination is recommended to prevent moisture retention. Thus, it is advisable to contact a certified water damage professional that has years of experience dealing with not only water damage repair but also mold; to create a full assessment of the extent of damage. Figure 9.8 Water leakage in ceiling. (Yeoh, 2016)
  • 151.
    129 Window frames The woodenwindow frame is rotten and the paint coating on the window frame has peeled off (Figure 8.11). The planter boxes are attached to the windows. The condition of the soil in the planter box is always moist due to the climate of our country. When water contacts to an unprotected wood surface for a long period, the wood begins to deteriorate (Water Damage Defense, 2013.). Therefore, multiple coats of waterproof wood sealer paintings are required to prevent the wooden window frame from rotting as it stops the absorption of moisture by the wood. Figure 8.9 Rotten window frame on the East elevation (Yeoh, 2016) Figure 9.9 Damaged window frame. (Yeoh, 2016)
  • 152.
    130 Ceramic tiles The ceramictiles on the exterior floor are buckled up (Figure 8.13). This may cause by the thermal shock. Thermal shock occurs when the tiles are heated for a few hours and a sudden storm cools down the surface with a large amount of water (Anonymous, 2014.). Another example is when the sun only heats a small portion of the floor but the rest is colder (Anonymous, 2014). These two situations may cause heaving of the floor tiles. In order to fix this and avoid further problems in the future, it is important to remove the tiles and retile the Figure 9.10 Exterior ceramic tiles. (Yeoh, 2016)
  • 153.
    131 Electrical Conduits The paintof the PVC electrical conduits covering the electrical wires are peeling off (Figure 8.5). This does not give a major concern but it affects the aesthetic of the building and is unpleasant to the eyes. Repainting is required in order to maintain aesthetic value of the building. Figure 9.11 Peeling off paint. (Yeoh, 2016)
  • 154.
    132 9.2.2 Interior Carpet It isused to cover the wooden flooring of Balairung to ensure the wooden flooring is in good condition (Figure 8.14). Carpet with floral motif which enhances aesthetic beauty of the Balairung. Big Balairung with high ceiling has an echo problem, carpet on hard floor soften the surface and help to absorb reverberating noise in the Balairung (Kelsey, n.d.). Embroidered Fabric The fabric used in the Balairung (Figure 8.15) and the Queen suite (Figure 8.16) are well maintained. Figure 9.12 The interior of Balairung Seri with plush carpet. (Yeoh, 2016) Figure 9.13 The panels with embroidered fabric. (Yeoh, 2016)
  • 155.
    133 Wallpapers Wallpapers are toprotect the walls from damaging, cracking and other factors than will decrease the durability of the walls (Pmac, 2015.). The fabric wallpapers are in good condition as the surrounding is dry and cool. The Balairung and the Queen suite are fully enclosed hence the probability of wallpaper exposing to sunlight is lower. This helps to keep the wallpaper in good condition as it will not fade (Natalie, 2014.). Paint Paint cracks in visible on several parts of the interior walls and columns (Figure 8.7). This is due to lack of paint coat finishing. In order to avoid the paint from cracking, sufficient amount of paint finish has to thoroughly coated. Regular maintenance is required to preserve the paint. Figure 9.14 Interior wall of Personal Dining Room in Queen Suite (Yeoh, 2016) Figure 9.15 Paint cracks at the suites. (Yeoh, 2016)
  • 156.
    134 Marble The marble wallingand flooring tiles in the queen‟s bathroom (Figure 8.17) and the king‟s bathroom (Figure 8.18) are in good condition. The finishing in the bathroom is different because the bathroom is more humid compared with other spaces in the building. Marble is selected as it is resistant to moisture (Anonymous, 2016). As a conclusion, the finishing in the interior of the building is well maintained compared to the exterior of the building because the humidity, temperature and the probability of exposure to light in the interior is more stable than the exterior. A consistent environment is the key point of keeping it in a good condition. Figure 9.17 King’s bathroom (Yeoh, 2016) Figure 9.16 Queen’s bathroom (Yeoh, 2016)
  • 157.
    135 Wood Paneling Signs ofsevere damage from dampness are visible at one part of the meeting room (Figure 8.8) due to water leakage. This causes a panel of the wood to decay. The dampness travels all the way from the ceiling to the carpet floor, which it affects the aesthetic value. Several attempts of repair has been undertaken, however the leakage still occur. Figure 9.18 Wood decay (Yeoh, 2016)
  • 158.
    136 9.3 Limitations inInspections Limitation of Exterior Inspection  Roof inspection may be limited by access, condition, weather, or other safety concerns.  Evidence of prior leaks may be disguised by interior finishes.  The estimation of remaining roof life are approximations only and do not preclude the possibility of leakage. Leakage candevelop at any time and may depend on rain intensity, wind direction, and other factors. Limitation of Interior Inspection  Furniture, storage, appliances or wall hangings are not moved to permit inspection and may block defects.  Carpeting, window treatments, central vacuum systems, building appliances, recreational facilities, paint, wallpaper, and other finish treatments are not inspected. Summary of findings The current condition of the overall Balairungis in a good condition. Despite that, there are several maintenance work that has to done on the Balairong to keep the building in its upmost condition. This is important because the Balairungis a symbol of greatness that shows the throne of Malaysia and used for his Majesty, the Yang Di-PertuanAgong, and her Majesty, the Raja PermaisuriAgong to hold official ceremonies. These include the taking of the royal pledge, installation ceremony of a new elected king and appointments for new prime ministers. The gallery is also an area to accept foreign diplomatic appointments and even a banquet hall.
  • 159.
    137 9.3 Historic PreservationsAnd Conservations The preservation method used and the problem each element has: A) Building materials (i) Wood There are two approaches in preserving wood structures. The first is through pesticides that uses both insecticides and fungicides which would control pest damaged to the wood. The pesticides comes in three different types which are dry or wetted powders and gaseous spray. The second approach is to apply preservatives to the wood before or during construction. This would prevent the troubles of attacking the pest after they have become a problem. There are variety of inorganic and organic products that have been developed and used in various building applications. When there‟s damage done, if not severe, reinforcement may be needed to support the damaged area in order to retain the structural balance. If severe, replication or a replacement might be needed. (ii) Masonry Many masonry products have decay mechanism which was due to their characteristics of being moisture absorption product. Masonry is a porous material that has the tendency to absorb water, thus more troublesome than preserving wood, as Robert A. Young said in his book. Thus to preserve historic masonry, "Historic buildings provide the authenticity, the credibility, the sense of community, the sense of history that bind in a fast – moving, 24/7 ever – changing world. They ground us. They provide a sense of self, a sense of identity in this creative age that we are moving into" - Richard Florida
  • 160.
    138 coatings were applied.The factor that caused a debate was of the recognition of differences between water repellant and waterproof coatings as masonry products were required to allow moisture vapor in the masonry to escape. When moisture vapor are unable to escape, the vapor may move to the interior of the building and damage the interior finishes. There are other methods besides coatings, which are consolidants, expoxies and infill repairs method. If the deterioration is severe, replication or a replacement may be needed in order to prevent it from affecting the other structures. (iii) Concrete Similarly to the masonry product, concrete is also a porous material. Thus the methods of preserving concrete would be the same as those for the masonry products. (iv) Metal Metals will rust as they oxidized into the air. Thus to preserve metal in historic buildings, stabilization is used. This is as the sources of decay are identified, the damaged metal may be stabilized with nominal repairs. Other than that, moisture control should be applicable in order to prevent the air from being moisture and react to the metal. If the rust done to the metal is severe, replication or a replacement might be needed. B) Building Fabric : (i) Roofing A well-qualified contractor is required in order to inspect and repair the roof especially historic roof as the systems varies significantly from modern construction practices. Covering the roof with new ones by attaching the new cladding directly over the existing ones but this is only possible for only wood and asphalt shingle roofs. Other than that, replacing the damaged roof tiles with one of the similar material.
  • 161.
    139 (ii) Wall Cladding Thetypical problem the walls would usually face would be moisture penetration, exposed to the sunlight, heat and wind. Annual or seasonal maintenance are required to catch and eliminate the decay mechanisms before they become substantial. Repairs made can be applied directly similarly to vertical cladding products. (iii) Windows Along with the problems associated with woods and metals, windows experience problems such as structural failures, missing features and callous replacement. Many deteriorated windows can have their sashes, frames or casement repaired or replaced. C) Building ornaments &finishes : (i) Floors Floors usually have moisture related problems and sometimes even mechanical failures and missing material element. Preserving using harsh cleaning methods or using ultraviolet lights is advisably avoided as harsh cleaning will damage further the floor and ultraviolet lights will cause a change of colour or the material in the floor. Thus to preserve, mild cleaning is used and then sealed in to avoid decaying in materials. (ii) Walls & Ceilings – The problem that usually walls and ceilings has are usually fire, vandalism, moisture, natural disasters, mechanical failures and material losses. Limiting the exposure of ultraviolet light and enable annual maintenance or regular checkups on the materials are some of the methods that can be used for preserving them. To preserve surfaces with decorative ornamental features, avoid aggressive or harsh cleaning.
  • 162.
    140 9.4 Improvement suggestionson Design Roof In this building, several problems are aroused due to poor construction. One of it is identified at the roof.In general, eave are the edges of the roof overhang the face of a wall, protecting the underlying structure. In this building, the length of the projected eaves are about 1 metre long, which is odd as compared to the other roof eave in Malaysian context. Moisture is the one of the biggest problem that cause failure in construction. When it rains, the rainwater flow from the higher end to the lower on pitched roof. The disadvantages of having the long roof eave is that it blocks the directexposure of sunlight, results in high moisture and promote growth of fungus at the concrete gutter below the eave. Figure 9.19 Short section cut of Balairung Seri. (Neoh, 2016)
  • 163.
    141 Floor Planning Another problemcreated are due to poor planning are the position of the door in dressing room 2 on the first floor. As the door connected to the water closet from the dressing room is placed in the middle, this affects the circulation flow and show poor space planning. This is because the user will focus on walking towards the door causing the space in the centre to be wasted and thus making the circulation flow worse when furniture are placed in. Practically, placing the door on the left or right near the corner would be a far by better option. Figure 9.20 Floor Plan of dressing room and water closet at first floor. (Tan, 2016)
  • 164.
    142 The direct placementof the spiral staircase and M&E room at the side of Balairung Seri somehow truncated the grand symmetrical design of the hall. The hold which holds the most prominent role of the entire complex shall be designed in the most delicate rigor. However, the placements of these structures reduce the area of the outer sanctum of the Balairung Seri, disrupted the symmetry that depicts order, harmony and balance. The design should incorporate the ideal placement of these elements in an early stage, to avoid being misunderstood as a random placement due to disrupted schedule and unplanned prior consideration. The location of two unknown angled room at the side of the Balairung Seri also holds a mystery in their role. Now, the room is entirely sealed out from visitors and are abandoned. We found that attention should be placed to these spaces. Figure 9.21 The asymmetrical plan of the throne hall. (Lim, 2016)
  • 165.
    143 Staircase Besides, problem alsoarise due to poor design at the grille staircase, creating trouble when the user unlock the gate from the inside. A simple way to solve this would be adding a landing prior to the entrance of the grille stairs, giving the user a larger and more comfortable area while opening the gate. Consider about the safety precaution, the gap between the staircases and the wall is another problem. By chance, tragedy might happen when one accidentally step into the gap hurt themselves. Figure Grille staircase in the exterior. (Foo, 2016) Figure Gap between the staircase and the wall (Foo, 2016)
  • 166.
    144 10.1 Role ofBalairung Seri in Identifying the true Malaysian Architecture As we traverse from the main building to the annex building, the architectural style transforms from Palladian and British Colonial style to a different language. Source it back to the 1980s when the annex building was built, our country was still considered as a young nation, eager to join the world and prove herself to be equally competitive. In a stage of searching a new identity, the design is devoid of traces of the past which stirred any memories of the colonization from occupants before. In this quest of finding a true self, architecture becomes the most proficient language. Take the example of the world's icon, we tends to relate building as a country's symbol. For instance, Eiffel Tower of Paris, the Burj Al Arab of Dubai, the Marina Bay Sands of Singapore and etc. As a nation, we hope to be recognized but the methodology is crucial. In the epoch of post-independent Malaysia, expatriates, cultivated from the West brought their ideology back to our nation. During the period, international style led by Le Corbusier was widely favored due to its modernistic approach of letting go the past and embracing new hope, celebrating the monumentality of material and form, manifested the spirit of time and space brutally and confidently, without compromising the art of humanistic consideration, a machine fit for man. At the time, whereby most of the nations were recovering from the agonies and calamities that war brought forth, a new gush of architectural Zeitgeist is welcomed, as their desire for a better tomorrow. All that are evocative of the hegemony or dominion for any particular nation or civilization, which generally leads to the spark of colonization, Imperialism and finally the World Wars are suppressed. As Wright stated "To emulate architecture
  • 167.
    145 that came froman aristocratic or autocratic regime of the past was not a true attempt at portraying the new ideals of democracy which gave the power of governance to the people and not to the elite". Thus, International style became the pinnacle of 20th Century architecture. And this style is incorporated into Malaysia's context, largely inspired by the Corbusier's Chandigarh Capitol in India due to the similarity of climatic and historical context. Figure 10.1. Chandigarh Capitol by Le Corbusier. (Canadian Centre of Architecture, 1956) In Malaysia, International Style was adapted and assimilated to form as what local architecture critic, Mr Mohamad Rashid would put it as "Machine Regionalism", which means a building as a machine that would sieve the climate through it (Rashid, 2005). The Balairung Annex Building shows significant influences of this style. Through the usage of mass concrete in brutalist form of a reduced geometry, "egg crate" louvers and louvered shade and openings, the signature of this style is clearly depicted. This particular language works well in our country, bestowed with sunshine all year round, which light is harnessed and tamed. The louvers created a significant reduction in heat gain and direct daylight for the interior, also enriching the monotonous volumes of mass concrete with the play of shadow. However, this style is not a positive search of national identity, instead is more of a passive design shelter in response to the local climate, as Rashid declared. Rather than concocting our national's identity, it is more of a direct rejection of any revivalism that we are aware
  • 168.
    146 of. The spiritof the place is rooted, but the spirit of the time is yet to be clarified. However, the interior of the building is contrary to its expressionism of the exterior. The Balairung Seri at the ground floor is an amalgam of traditional Malay Revivalism with Eclectism, with intricately gilded timber carvings panels, rows of decorative columns and arched windows adorned by Islamic geometry. On the first floor, where the Victorian influenced Majesty's suite is located, it is clear that the lavishness of Victorian style is still considered the most favored way to express the opulence of Royalty at the time. Panels with embroidered fabrics, plastered ceilings and fresco adorned the space. There is no trace of Vernacular identity in the suite, instead it is pure the continuation from the main building's interior design. From these, we discovered that the true identity of Malaysian architecture is not yet completely embodied in this Balairung Seri building. It can be understood as our nation is still in a considerably young stage in terms of post-merdeka architecture. A hold on International style as a starting point is a good venture, but perhaps there are more yet to be discovered. While following the stream of International style, we should learn to extract the very essential of being Malaysia. Not of an inclination towards a specific dominated groups, nor the oppression of our roots and definitely not of the blindfold of economic or political pressure. It is not of something utterly rhetoric in a grand scale, but in a very humble way, embraced by the whole nation, whereby it touches the life of every Malaysian and whips resonance among you and me. By doing so, we share common memories and this strengthens the integration among people through architecture. It is fortunate that Kisho Kurokawa came into the scene and set forth the future path of modernistic expressionism (Rashid, 2005). The Kuala Lumpur International Airport is a good instance. Without a specific reference to any ethnics or political will, the
  • 169.
    147 building is fullof metaphors, that allows the people to freely relate it based on our common ground of shared cultures. Some may refer the gently curving ceiling as the Wau, some may refer it as the billowing sails and so on. The form is minimal and yet so profound in its message, perhaps in a way of "Less is More". It serves as the blank space for the people to fill in their ideology and imagination, to make it a true Malaysian architecture. As architecture should function as a canvas for the people, gently recedes to bring out the foremost purpose of architecture, a space for human interaction. To conclude, we are still in the journey of finding our national identity in architecture. The Balairung Seri annex building served as a stepping stone, to catapult our architecture towards a higher range. By bearing concern towards our people's shared roots and dreams, we shall be able to build what which is known as a true Malaysian Architecture. Figure 10.2 The KLIA by Kisho Kurokawa. (Backpacking Malaysia, n.d.)
  • 170.
    148 10.2 Aspiration As finalstage of this report we take a look at the status of the Royal Museum as a tourist attraction and the potential for it to become a centerpiece of the experience of visiting Kuala Lumpur. Status quo of the Muzium Diraja as tourist attraction With the opening of the former Istana Negara as Royal Museum, it has become publicly accessible. A stop has been added to the Kuala Lumpur Hop-on Hop-off bus route, making it easy for tourists to include a visit to the old palace in their sightseeing. Access for tourists and local visitors by other transportation means is not as straightforward as the main entrance lies off a major highway and thus is only accessible when travelling from one direction on the highway. An option to reach the attraction by foot from the Tun Sambanthan Monorail and via a pedestrian bridge over the Klang River and the Federal Highway (Jalan Syed Putra) is less well known as the directions are not communicated neither in published material including maps nor via signboards along the route. Figure 10.3 A map of Kuala Lumpur’s major tourist attractions (Mari mari, 2014)
  • 171.
    149 Sufficient parking areais available for visitors arriving via taxis, cars or tour busses. The most interesting parts of the palace are now accessible by the public and many visitors, local as well as international, appear to take great interest in taking a glimpse into the regal life of Malaysia‟s monarch and the related history. However, from observation, it appears that visitor numbers are relatively low. Aspiration for the future of the building To unlock the full potential of the Istana Negara, the questions to pursue should be: What would make a visit to the Istana Negara and the Royal Museum a central experience of a visit to Kuala Lumpur at par with the other local “super attractions” such as the KLCC Twin towers, and how can the full potential could be unlocked? How palaces and their gardens have become major attractions in the other cities is evident from a quick overview of case studies: Palaces in the United Kingdom: Many of the palaces and royal gardens in the United Kingdom and London are accessible to the public. Kensington Gardens, which is one of the Royal Parks of London, is accessible to the public and has become not only an integral part to tourists‟ visit but has become a centre of public urban life. Picnics, concerts and sport events are held in the gardens. Other palaces or former palaces that have opened their gardens to their citizens and visitors include the Imperial Palace in Tokyo and Hofburg in Vienna Figure 10.4Picnic in Keningston Garden (Caroline, 2013)
  • 172.
    150 Other former royalresidences are nowadays utilised for hospitality services such as dining and accommodation. For instance, The Taj Falaknuma Palace in Hyderabad, India is famous for boosting the world‟s longest dining table. A number of other palaces around the world have been converted into hotels to varying degrees. Some are partly accessible to the public and partly private while others have been fully converted into hotels. The Old Istana Negara in the context of Kuala Lumpur’s urban development In the current city topography the palace lies a little “off- center”. However, a closer look at the planned urban development in Kuala Lumpur shows that the location of the palace will become more central to the larger metropolitan area. This is especially due to major developments happening and planned within the vicinity of a few kilometer from the palace. For instance, Bandar Malaysia to the south west of the palace, planned Menara Warisan project in the vicinity of the Merdeka Stadium, growth around the KL Sentral area, River of life project, Petaling Jaya growing into a sister city to the south of Kuala Lumpur etc. It is believed that these development will undoubtedly raise the popularity of Old Istana Negara and transform this site into a more welcoming tourist spot. River of Life project for example, it aims to transform the Klang River into a vibrant and bustling waterfront, making Kuala Lumpur more Options Enhanced attractiveness via Local suitability Kensington Gardens Concerts Yes Imperial Palace, Tokyo Public gardens Yes Government House, Sydney Royal Botanic gardens Yes Figure 10.3. Table of comparison among Royal Gardens. ( Rosien, 2016)
  • 173.
    151 appealing with greensurroundings and walkways. (segaran, 2015) Potential for areas of the Balairung Seri wing, which are currently not used: A significant portion of the Balairung wing is not accessible to the public. Most notably, this includes the Banquet kitchen on the southern end of the building as well as the areas related to banqueting on the first floor. While this certainly requires further analysis there seem some general options to unlock further attraction potential by utilizing these areas without major changes. Option A: Remove the remaining kitchen equipment and refurbish (paint, flooring) the areas on the southern end of the balairung wing. The available space could be utilized for exhibitions such as art, photography, travelling international exhibitions, showcases from other museums under the Department of Museums or talks / screenings. Option B: Reinstate the kitchen and position the bailarung hall as space for festive dinners or even private “dine like the royals” events. Figure 10.5 Banquet set up in the garden (Debbie, 2015)
  • 174.
    152 Other potential tomake the Istana and its premises a more prominent spot in Kuala Lumpur would be to open the gardens for walks, visits, picnics, educational tours and/or smaller events such as concerts etc. As green lungs are becoming more important in the city to change the urban environment, the green landscape next to the long stretch drive way in front of the old Istana Negara becomes one of the potential tourist attraction. It can be transform into public gathering area or garden for public urban life by the citizens.
  • 175.
    153 Reference List Allen, R.(n.d) American Meadows: All About Irises. Retrieved from http://www.americanmeadows.com/about-irises Allied Scope Sdn. Bhd. (2013) Cold-Formed Metal Framing. Retrieved from http://www.gfs- web.com/2blueprint/allied-scope-sdn-bhd-website- under-construction/ Arkib Negara Malaysia. (2015). PenjawatAwam: Istana Iskandariah. Retrieved from http://www.arkib.gov.my/web/guest/istana- iskandariah Art of Mourning. (2011). Know Your Trees: Symbolism, The Cypress. Retrieved from http://artofmourning.com/2011/09/07/know-your- trees-symbolism-the-cypress/ AsiaTravel. (n.d.) Travel Information of Malaysia. Retrieved from http://asiatravel.com/malinfo.html AustralianPolitics. (2016). Constitutional Monarchy - Definition AustralianPolitics.com. Retrieved from http://australianpolitics.com/democracy-and- politics/key-terms/constitutional-monarchy Bensley. (n.d.) Photo Library: Malaysia: The RoyalPalace. Retrieved from http://www.bensley.com/ Bouaissa, M. (2013). The Crucial Role Of Geometry In Islamic Art. Al Arte Magazine. Retrieved from http://www.alartemag.be/en/en-art/the-crucial-role- of-geometry-in-islamic-art/ Caroline, R. (2013). The Best Places to Picnic in London. Retrieved from http://blog.visitlondon.com/2013/05/the-best- places-to-picnic-in-london/
  • 176.
    154 Chandeliers. (2011). AShort History. Retrieved from http://www.adrianalan.com/public/Chandeliers%20 -%20A%20Short%20History.pdf Chen, V. F., & Chin, K. Y. (1995). Kuala Lumpur: A sketchbook. Singapore: Archipelago Press. Chin,K.T., Chen, V.F., John, M.G. (2003). Landmarks of Selangor. Kuala Lumpur, Malaysia: Jugra. City Photo. (2016). Kuala Lumpur, Malaysia. http://www.city- photos.org/photo/35501.html Daily Press. (1989) Garden Dimensions: Islamic Gardens. Retrieved from http://articles.dailypress.com/1989-08- 27/features/8908250202_1_future-garden- famous-gardens-color-and-fragrance Elizabeth, C. (2007). The 10th Anniversary of TheMubin Sheppard Memorial Prize. Kuala Lumpur, Malaysia: BadanWarisan Malaysia. Emily. (2014). MuziumDiraja - Istana Negara Lama. Retrieved from http://www.emily2u.com/royal- museum-muzium-diraja-istana-negara-lama/ Expat Go. (2015). The River Of Love Project in Kuala Lumpur. Retrieved from http://www.expatgo.com/my/2015/05/14/the-river- of-life-project-in-kuala-lumpur/ Fauziah, A.R. (2010). BangunanBersejarah Di Kuala Lumpur dan Selangor. Kuala Lumpur, Malaysia: AzzamMaju Frangipanis. (n.d.) About Frangipanis. Retrieved from http://www.allthingsfrangipani.com/frangipanis.htm l George J.J. (n.d.) Session – II Indo Saracenic Architecture in Channai. Retrieved from http://www.cmdachennai.gov.in/pdfs/seminar_heri tage_buildings/Indo_Saracenic_Architecture_in_C hennai.pdf
  • 177.
    155 Ghani, R. (2012).Unique constitutional monarchy in Malaysia‟s parliamentary democracy. Retrieved fromhttp://www.theborneopost.com/2012/04/07/un ique -constitutional-monarchy-in-malaysias- parliamentary-democracy-new/#ixzz413kPmHIx Hafiz, W. (2012). Malaysian New Istana Negara in Jalan Duta. Retrieved from http://www.wanhafiz.com/2012/03/malaysian-new- istana-negara-in-jalan.html Hilmi, W, H. (2014). Islamic Architecture. Retrieved from http://wanhaziqhilmi- islamicarchitecture.blogspot.my/ History of Yap Ah Loy. (n.d.). A Description of Yap Ah Loy. Retrieved from http://yapahloy.tripod.com/a_description_of_yap_ ah_loy.htm Imam Reza. (n.d.) Islamic Architecture. Retrieved from http://www.imamreza.net/eng/imamreza.php?id=4 204 Insight Guides. (n.d.) Malaysia History. Retrieved from https://www.insightguides.com/destinations/asia- pacific/malaysia/historical-highlights Istana Negara Kuala Lumpur. (2016). Istana Negara Jalan Duta. Retrieved from http://www.istananegara.gov.my/index.php?option =com_content&view=article&id=94&Itemid=621 Izwan, A. (2015) Istana Rasmi Sultan Perak : Istana Iskandariah, Kuala Kangsar. Retrieved from http://warisanpermaisuri.blogspot.my/2015/08/ista na-iskandariah-kuala-kangsar.html Izzati, G. (2014) Apa Yang Ada Di MuziumDiraja Kuala Lumpur. Retrieved from http://www.kisahtatie.com/2014/10/apa-yang-ada- di-muzium-diraja-kuala.html
  • 178.
    156 Jalil. F. (n.d.)Role Of Monarchy and Traditional Rulers in Malaysia. Retrieved from http://www.academia.edu/1021933/ROLE_OF_M ONARCHY_AND_TRADITIONAL_RULERS_IN_ MALAYSIA James. (2009). Through the oculus: Water in Islamic Architecture. Retrieved from http://throughtheoculus.blogspot.my/2009/03/wate r-in-islamic-architecture.html Kayrolldin. (2015). MuziumDiraja. Retrieved from http://kayrolldin.blogspot.my/2015/01/muzium- diraja-istana-negara-lama.html Kdymm Sultan Terengganu (n.d.) Istana-istanaNegeri Terengganu: Istana Maziah. Retrieved from http://www.istana.terengganu.gov.my/istana_mazi ah.php Ken, Y. (1992) The Architecture of Malaysia. Amsterdam, The Netherlands: Pepin Van Roojen. KuenCheng High School. (n.d.) About Us. Retrieved from http://www.kuencheng.edu.my/kchsen/about- us/ LawTeacher. (2016). The Malaysian Constitutional Monarchy System | Law Teacher.Retrieved from http://www.lawteacher.net/free-law- essays/administrative-law/the-malaysian- constitutional-monarchy-system-administrative- law-essay.php Life College. (n.d.) About Malaysia: General Information About Malaysia. Retrieved from http://www.life.edu.my/about-malaysia/ Lim. (2009). Panoramic Kuala Lumpur 1884. Retrieved from https://limthianleong.wordpress.com/2009/07/05/p anoramic-kuala-lumpur-1884/ Ling. (2015) Istana Negara Report. Retrieved from https://issuu.com/x3xiaozhu/docs/real_full_report
  • 179.
    157 Malaysian‟s Open KualaLumpur. (2012). An Introduction to Kuala Lumpur. Retrieved from http://www.malaysianopentennis.com/2012/intro.p hp MitLibraries. (n.d.) Dome: Istana Iskandariah Kuala Kangsar. Retrieved from https://dome.mit.edu/handle/1721.3/133567 Mohamad, T.M.R. (2005) Malaysian Architecture: Crisis Within. Kuala Lumpur, Malaysia: Utusan Moore, W., & Saleh, M. N. (2003). Malaysia: Portrait of a nation. Singapore: Periplus. Murthi, R, S. (2013). Old Photos of Kuala Lumpur. Retrieved from http://www.rsmurthi.com/oldkualalumpurphotos1.h tml Names Of Flowers. (2015) The Hibiscus Flower. Retrieved from http://www.namesofflowers.net/hibiscus.html Omi, H.H.S., Haji, S.H.I., Haji, Z. H. I. (2012) Seri PadukaBaginda Yang DipertuanAgongPayung Negara. Putrajaya, Malaysia: JabatanPenerangan Malaysia PejabatPenyimpanMohorBesar Raja-raja Malaysia. (2010). FungsiPejabatPenyimpanMohorBesar Raja-raja Malaysia. Retrieved from http://www.majlisraja- raja.gov.my/index.php/bm/maklumat-jabatan/8- kategori/18#section=p4&Itemid=244 Sabariah, A., Norzehan, M.Y. (2006) MercuTandadanBangunanBersejarah. Selangor, Malaysia: Sejati. Safwan, S. (2010). SejarahBesut, NegeriBerajasatu masa lalu. Retrieved from http://alamiterengganu.blogspot.my/2010/05/sejar ah-besut-negeri-beraja-satu-masa.html
  • 180.
    158 Saga, M. (2015).MonarkiDiraja: Singgahsana Malaysia. Retrieved from http://monarkidiraja.blogspot.my/2015/06/singgah sana-merupakan-tempat-duduk-bagi.html Saoud, R. (n.d.) Muslim Heritage: The arch that never sleeps. Retrieved from http://www.muslimheritage.com/article/arch-never- sleeps Sapiee, R. (2008). Malay Olden Art. Retrieved from http://artmelayu.blogspot.my/2008/08/istana-lama- old-palace-of-seri-menanti Sepul. (2014) Skyscaper City. Retrieved from http://www.skyscrapercity.com/showthread.php?p =128866142 Shafa, F. (2012). DetikTravel: RibutSoalBubu, CekDuluNih Istana Selangor. Retrieved from http://travel.detik.com/read/2012/05/21/123213/19 20707/1025/ribut-soal-bubu-cek-dulu-nih-istana- selangor Sonia, R,C. (2016). Flickr: Hibiscus. Retrieved from https://www.flickr.com/photos/134660554@N02/2 5089553665/ Stars and Sickles. (n.d.). An Alternative Cold War - Alternate History Discussion Board. Retrieved from http://www.alternatehistory.com/discussion/showt hread.php?t=280530 Tengku, S. (2013) DuaKubahDikiridanKananSingahsana Di Balairong Seri Istana Syarqiyyah. Retrieved from http://tengkusyah.blogspot.my/2013/07/blog- post.html The Alice Smith School. (n.d.) About Us. Retrieved from http://www.alice-smith.edu.my/367/about- us/history
  • 181.
    159 The Malaysian Insider.(2012). History Contradicts Minister‟s Arguments That Malaysia Is Not Secular. Retrieved from http://www.themalaysianinsider.com/malaysia/arti cle/history-contradicts-ministers-arguments-that- malaysia-is-not-secular The Telegraph. (n.d.) Royal Places You Can Visit. Retrieved from http://www.telegraph.co.uk/luxury/travel/82613/roy al-palaces-you-can-visit.html The UN Refugee Agency Malaysia. (2011). Office of the United Nations High Commissioner for Refugees. Retrieved from http://www.unhcr.org.my/About_Us-@- About_Us.aspx Utusan Online. (2013) MuziumDiraja Akan DibukaUmumFebruariIni. Retrieve from http://ww1.utusan.com.my/utusan/Kota/20130123/ wk_04/Muzium-Diraja-akan-dibuka-kepada- umum-Februari-ini WangsaMahkota Selangor. (2010). BUKIT JUGRA PUSAT PEMERINTAHAN SULTAN ABD SAMAD. Retrieved from https://wangsamahkota.wordpress.com/2010/09/2 5/bukit-jugra-pusat-pemerintahan-sultan-abd- samad/ Wonder Malaysia. (n.d.) History of Kuala Lumpur. Retrieved from http://www.wonderfulmalaysia.com/kuala-lumpur- history.htm WyeYim. (2013). Nomadtravel‟s Ramblings: Kuala Lumpur losing its Heritage & Icons of Independence. Retrieved from https://nomadtravel.wordpress.com/2013/03/10/ku ala-lumpur-losing-heritage/
  • 182.
    160 Glossary Annex – Partof a building that is an extension of a main building providing additional space or accommodation. Amalgam - A mixture/combination. Ambience – The atmosphere or character of a space. Apex – The highest point of something. Atrium – A rectangular open-roofed entrance hall or central court in an ancient Roman house. Asylum – A place of refuge. Arches – An upward curved construction that extends across an opening. Arabesque - A form of Arabic or Moorish decoration consisting of intertwined flowing patterns. Aurah – a term used within Islam which symbolizes the intimate parts of the body, for both men and women, which must be covered with clothing. Axis - An imaginary straight line that divides an object into symmetrical halves. Base – The bottom supporting member of a column/pilaster. Buckled – To bulge or curve under excessive strain. Capital – The topmost member of a column/pilaster. Carving – A type of design produced by cutting/shaping a solid material. Circulation - Pathways created through a floor plan of a building that help contribute to how one experiences the architecture of a building. Cladding - a protective or insulating layer fixed on the outer surface of a structure. Colonnade – A long row of columns joined by a horizontal continuous lintel. Colonial - An architectural style from a mother country that has been incorporated into buildings belonging to colonies of that particular country. Columns - Structural elements of a building that transmit the load of the structure above to other structural elements below them.
  • 183.
    161 Coronations - Ceremoniesin which the crowning of a King, Queen or other sovereign takes place. Castellated - a building made to look like a castle by having towers and battlements. Constitutional – Relating to an established set of principles governing a nation. Core - The central most important part of something. Complex – A group of buildings/facilities that are similar located on the same site. Dome – A rounded vault forming the roof of a building. Elevation - The external face of a building or structure drawn to scale. Emblem – A symbolic/ distinctive object of a nation, organization or family. Façade - Any face of a building given special architectural treatment. Foliage – Plant/tree leaves considered as a group. Foundation - An element that connects an architectural structure to the ground thereby transferring all loads from the structure to the ground. Gilded – Covered with a thin layer of gold. Haya – An idea of tranquility, decency and unobtrusiveness. Hardscape - All man-made fixtures that are part of a planned outdoor area. Imperialism – The policy by which a country increases its power by gaining control of other parts of the world. Iqtisad – The balance in architecture between functional and spiritual elements. Lacquer – A type of varnish used as a protective coating for materials like wood. Louvers - Each of a set of angled slats hung at regular intervals in openings to allow air or light to pass through. Lounge – A public room used for reclining. Linear – A one dimension element related to a straight line. Mezzanine - A raised platform that is independent of a building structure and is supported by columns. Monarchy – A governmental system in which supreme power is nominally held by a monarch.
  • 184.
    162 Mold – Agrowth of fungus on a damp surface of a structure. Oblique – Having a slanting or sloping direction. Ornate – Elaborated with decorative details. Palladian style – A style of architecture inspired by the designs of Venetian Architect Andrea Palladio. Pelmet – A decorative hangings or board fixed above a window to conceal the curtain rail. Pediment – An architectural element consisting of a gable placed over a horizontal continuous lintel that is supported by columns. Pillar – A vertical support of a column used for decoration. Pilaster - A rectangular column that projects partially from the wall to which it is attached; used more as a decorative element as opposed to a structural element. Plasterboard – A building material made out of large sheets of plaster covered with thick paper used for making walls and ceilings. Prefabricated - Parts manufactured in advance and ready to be put together, assembled at a factory. Rhythmic – Of having a regular repeated pattern of sounds or movements using a tempo. Riser - A vertical component of a step. Regal – Something magnificent or dignified, fit for a monarch. Sanctum - A sacred place. Softscape - Refers to the living elements of a landscape. Saracenic – An Islamic architecture consists of mosques and is characterized by decorated surfaces, bulbous domes and multifoil arches. Singgahsana - The throne. Sovereignty – The quality of having independent authority over a geographic area. Symmetrical – An element made up around an axis showing exactly similar parts facing each other. Tenon and mortise – A strong joint made by members that consists of a square hole (mortise) and another consisting of shoulders that seat when connected (tenon).
  • 185.
    163 Tebuk tembus bersilat– Traditional wood carving art. Tread – Are the top baseboards onto which one step on. Takhta - A ceremonial chair used by a ruler, especially a king or a queen. Vernacular – Reflection/indication of local traditions. Victorian style - A series of architectural revival styles that was prominent during the reign of Queen Victoria. Whiplash – A popular design motif of the Art Nouveau Style consisting of a series of elliptically shaped reverse curves. Zeitgeist – A spirit or mood of a particular period of history as appeared by the thoughts and convictions of the time.
  • 187.
  • 188.
  • 189.
  • 190.
  • 191.
  • 192.
  • 193.
  • 194.
  • 195.
  • 196.