School of Architecture, Building & Design
Foundation in Natural and Built Environment (FNBE)
April Intake
Constructed Landscape [ARC 30203]
Final Project (Project 3: Landscape Project)
Tutor : Ms. Normah
Group Leader : Natalie Ki Xiao Xuan 0318918
Group Members : Philia Chua Yi Sian 0318936
Ryan Kerry Jee Jin Yiing 0318715
Too Mun Fai 0318214
Ameer Farhan 0319304
Ricco Soh Zheng Wei 0319890
2
Content
No. Title Page
Content
Introduction
Site analysis
Concept
Master plan
Sectional elevation
Perspective drawing
Planting plan
Costing (Bill of Quantities)
Maintenance plan
Conclusion
1
2
3
4
5
6
7
8
9
10
11
2
3
4 – 6
7 – 9
10 – 11
12 – 14
15
16 – 17
18 – 19
20
21
3
Introduction
The Landscape Project is the final project for Constructed Landscape. In this project, we
were required to understand basic landscape architecture drawings as a mean of
communication and representation of ideas. The objective of this project is to introduce
us to the completion of landscape projects from the beginning till the end. It is also
aimed to expose us to concepts, analysis, master plans, costing, planting plans,
construction and maintenance.
In the beginning of the project, we were divided into a group of six and was allowed to
choose a site roughly the area of 100m²within our campus. We were then required to
study and apply the anatomy of our project accordingly. After analyzing our site, we
were tasked to propose a green space which promotes sustainable living.
Lastly, we were established to present our proposal on two A2-sized presentation
boards and a report as a group.
4
Site Analysis
Our site is located at the empty space beside Taylor’s University Admission’s Office
(behind Taylor’s signage).
The area of our site is 7m x 13m, excluding the axial termination point, making 91m²in
total.
NN
5
Existing Features of our Site
The existing features of our site includes two vertical columns, supporting a hanging
garden which stretches across the entire western side of our site. On the opposite
perimeter, runs the side elevation of the Enrolment and Admission’s Office.
Accessibility of our Site
Our site is easily accessible from the drop-off area (roundabout). The easy access points
increase the exposure of green space, thus resulting in the increase of green impact to
our lifestyle. Other than that, the flat terrain of our site makes it easier for site
enhancements and improvements. This also enables us to have a more balanced
distribution of greenery.
North Point and Environmental Condition of our Site
Furthermore, the spacious vertical area of our site allows vertical planting to be done
easily. This also provides a generous open area for comfort. In addition to that, the open
space of our site allows natural exposure of sunlight, wind and rain, which provides a
perfect environment for healthy growth of vegetation.
The north point of our site faces the axial termination point. The sun rises in the East
and sets in the West, and at noon, the sun is situated directly above our site; but our
site is shielded by a roof. During the afternoon, the sunlight will be shining into our site
from the West.
The wind blows from the South providing a light breeze throughout our site. Moving on,
the rain falls from the North-west region which calls for water-resistant
implementations on that particular end of our site.
Site Usage
Our site is currently rendered redundant, making it a waste of space.
Advantages of our Site
Our site despite its current lack of attention, provides a few advantages that can be
manipulated to be served as a usable green space. To name a few:
 It is an untouched open space which is provided by copious amount of sunlight.
 It has plenty of vertical space, allowing implementation of vertical planting
(existing feature: beautiful hanging garden).
 As the area is spacious and unbuilt, there is good ventilation caused by natural
wind exposure.
 There are plenty of access points, allowing human exposure to the site.
6
Disadvantages of our Site
Our site has suffered from neglect, resulting being underused and categorized as a
wasted space. Other than its lack of human contact, it also has a few disadvantages such
as:
 It can get hot due to its open space, especially around noon (during 12pm-4pm).
 It has been poorly maintained.
 As a result of its open space, it also causes it to be exposed to bad weather
conditions such as heavy rain during the wet seasons.
Client Evaluation of Requirements
The concept of this project is to utilize our site as a green space, inclusive of landscape
hardscape and softscape. However, it must also be suitable for the potential users of the
site. These include the student, scholars, lecturers and office workers of Taylor’s
University Lakeside Campus.
As such, it should include a few basic requirements to the design and function.
 It should be esthetically pleasing.
 Practical use of function. (User-friendly)
 Introduce green lifestyle.
 Enhance natural features of site.
 Soften the environment’s hardscape.
 Provides a variety of vegetation.
This can be achieved through multiple ways, all in which would lead to a successful
landscape project with a practical function that would ease the lifestyle of the users and
re-establish the site from its previous state.
 Introduction of more greenery and vegetation of different types and varieties.
 Refurbishing of tiles and implementation of different kinds of ground covers. For
example, soil, grass, timber deck and stone.
 Improve maintenance of area.
 Implement sustainable landscaping designs.
7
Concept
The purpose of our site for this project is to serve as a waiting area for pick-up/drop-off.
The reason we chose this purpose for our site is due to the suitability of our aim. This
includes the location of our site being just beside the main drop-off area of Taylor’s
University Lakeside Campus.
Concept of Project
The main concept of our project is to create a sustainable green space within our chosen
site. A green space can be defined as a protected or conserved area on which
development is indefinitely set aside which serves as an open space reserve which
includes the preservation and conservation of a rural nature or historic character in a
community or region. The conservation or preservation of an area is for the sake of
ecological, environmental, recreational, aesthetic or agricultural interest.
Conceptual Drawing #01:
1. Site area – Our site is bordered by a solid and perforated boundary, giving it a
visual axis that has dynamic movement.
2. Front – Because of the axis, our site can be divided into two sections. The front
faces the perforated boundary.
3. Back – The back faces the solid boundary.
4. Existing building fabric.
5. Axial from approach to axial termination point.
1
2
3
4
5
8
Conceptual Drawing #02:
1. Column A
2. Column B
3. Front right
4. Front left
5. Intersection – Caused by axis from approach and axis by columns.
6. Back right
7. Back left
1
2
3
4
5
6
7
Axis – Existing from the perforated
boundary and solid boundary.
Perforated boundary – Caused by
the existing row of columns.
Solid boundary – Caused by the
existing building fabric.
Visual focus – Which is
uninteresting as it is not being
addressed properly, thus causing
our site to be wasted in terms of
space.
Conceptual Drawing #03:
9
Conceptual Drawing #04:
1. Roof plan
2. Perforated boundary
3. Solid boundary
4. Scale – The ‘space’ formed by the roof and left and right boundaries has a tall
volume of more than the human scale, which makes it un-relatable and
unfriendly from the immense difference.
1
2
3
4
5
6
7
1
2
3
4
5
10
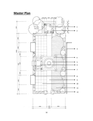
Master Plan
500 500 1000 500 500200020005000
100030001000
20002000
250013000
5005001000500
3000 1000 3000
7000
1
2
3
4
5
6
7
8
9
10
11
12
11
1. 5mm diameter mixed colorful natural pebble-wash
2. Loose gravel
3. Existing aluminum glazing curtain wall fabric
4. Terra-cotta tile finish
5. 2-tiers fountain to specialists details
6. “Railway sleepers” garden steps
7. 100 x 19mm thick “chengal” wood canopy
8. Existing RC column
9. 5mm diameter mixed colorful natural river pebble wash
10. “Nitro” – Nordic stone GSN03 FOHN (600 x 600mm) – Homogenous non-slip tile
laid to fall
11. 100 x 25mm thick “chengal” wood as floorboard
150 x 50mm thick “chengal” floor joists @ 300mm c/c
12. Planter box (750mm high x 500mm wide) in brick wall, complete with drainage
pipes discharged to existing channel
12
Sectional Elevation
450900
250 300
19003650
6950
400500350
8508504300
43006000
550 350
1
3
4
5
7
6
8
9
11
14
13
12
2
10
13
1. M.S. bracket
2. 100mm thick common brick in 1:3 cement sand mix mortar, plastered ta external
and painted to finish
3. M.S. cleat
4. Subsoil perforated earthen drain
5. Sand and gravel
6. Geo-tech net
7. 100 x 50mm thick chengal wood for overhead canopy
8. 150 x 75mm thick chengal floor joists 300mm c/c
9. 100 x 25mm thick chengal floorboard
10. 100 x 50mm thick chengal wood for joists
11. 600 x 450mm service manhole
12. Pump system
13. Modern cube light
14. Green velvet boxwood hedge – trimmed to design
14
1. Uplighter to illuminate the ceiling – mark the volume in height
2. Pendent light to illuminate waiting area
3. Vertical pendant light to substantiate central axis to soften the vertical volume
4. Backdrop curtain termination
5. Sculpture as the center
6. Overhead canopy
1
2
3
4
5
6
15
Perspective Drawing
16
Planting Plan
1
2
3
4
5
6
7
8
17
1. Bucida molineti (Spiny Bucida)
2. Buxus green velvet (Green Velvet Boxwood)
3. Juniperus osteosperma (Taylor Juniper)
4. Heliconia latispatha (False Bird-Of Paradise)
5. Cynodon dactylon (Bermudagrass Turf)
6. Hymenocallis littoralis (Spider Lily)
7. Codiaeum variegatum (Croton Plant)
8. Tulipa batalinii (Bronze Charm)
18
Costing (Bill of Quantities)
Item Description
Common
Name
Botanical
Name Size Quantity
Rate
( RM )
Total
( RM )
SOFTSCAPE WORKS
1 Shade Tree Spiny Bucida
Bucida
Molineti 100mm in D 5 50 250
2
Topiary Pom-
Pom
Euginia
Globaless 1.8m 2 302 604
3
Ornamental
Tree Frangipani Plumeria 6m 4 155.8 623.2
Taylor Juniper
Juniper us
osteosperma 1.8m 4 574.95 2299.8
4
Ornamental
Shrubs
False Bird-Of
Paradise
Heliconia
Latispatha 1.67m 8 47 376
5
Evergreen
Shrubs
Green Velvet
Boxwood
Buxus Green
Velvet 13m^2 43 54.33 2336.19
6 Shrubs
Bermudagrass
Turf
Cynodon
Dactylon 6m^2 36 256.65 9239.4
Croton Plant
Codiaeum
Variegatum NA 24 112 2688
Spider Lily
Hymenocallis
Littoralis NA 15 124.8 1872
Bronze Charm
Tulipa
batalinii NA 30 25.6 768
7 Mulching Soil
Grass Pattern
Area NA 3m^3 0 0 900
Hedges Area
( West side ) NA 3.6m^3 0 0 1080
Hedges Area
( East side ) NA 3m^3 0 0 900
Staking NA NA NA 11 60 660
HARDSCAPE WORKS
Groundcovers
Chengal
Wood NA 39m^2 95 68.21 6479.95
Chengal
Wood Floor
Joists NA 300mm c/c NA
Chengal
Wood NA 100x19mm NA
#5 Gravels NA 5mm 1 TON 0 91.1
Nordik Stone
GSN03 Fohn NA 1200m^2 60 39.65 2379
Railway
Sleepers NA 2m^2 9 9.44 84.96
Ornamental
Furniture
Cube
Outdoors
Light NA 165mm^2 2 243 486
Round
Stainless NA 9m^2 1 0 2812.8
19
Steel
Fountain
Geometrical
Sculpture NA 2.3m 1 0 1120
Furniture
Buckingham
Premium
Round Teak
Picnic Table NA 1.8m 3 4831 14493
Customize
Light Fitting
With LED
Uplighters
And LED
Pendant
Lights NA
1.8mx450mm
in D 1
Planter Box NA
750x500
( 13m^2 ) NA
Bergen
Benches
( Cement
base, Brick
wall, Plaster
finishing ) NA 1.8m 2234 0
Viglacera
Tiles NA 5400mm^2 0.8
CONSTRUCTION WORKS
1 Waterproofing NA NA
7x13
(91m^2) NA 37 3367
2 Electricity NA NA NA NA 24.36 2217
TOTAL COST 58,127.4
20
Maintenance Plan
In order to practice sustainability, we have based the design and construction of our site
on green concepts. This makes our site easier to maintain and sustain. We have tried
our best to strike a balance between the percentage of hardscape and softscape in our
site.
We have strongly emphasized on the use of durable and long-lasting materials to reduce
the need to maintain our site financially. Besides that, our site was designed with eco-
friendly intentions in mind, in order to reduce the negative effects of our site on the
surrounding environment.
Furthermore, we have also implemented modern green technology to reduce the use of
resources to maintain our site. For example, we have introduced the geo-tech drainage
system into our planter boxes to store water efficiently, and at the same time not
harming the specified plant.
Last but not least, we have also put thought into the energy consumption of our site and
has decided to use LED light bulbs in all our lighting circulations. This ultimately reduces
the required electrical input of our site and hence realizing our true purpose to create a
sustainable site.
21
Conclusion
In conclusion, we have transformed a seemingly redundant area next to the
administrative block into a comfortable and relaxing waiting area for our fellow
Taylorians. Our site has been designed to be a better and self-sustainable area that fits
the main aim of this project.
In the process of completing this project, we have researched a lot on the modern green
technologies and sustainable concepts to be implemented into our designs. With
relation to that, this project has greatly increased our knowledge and understanding
towards the efforts required to create and enhance our environment which helps us a
lot in our future career and makes our community a better place to live in.
With this, we hope that the community of this university will make full use of this place
and appreciate nature through our design. We also hope that our site can enhance their
social and study capabilities. We hope that our site can also serve a innovative and
creative source of inspiration to our fellow architectural and engineering students in our
university and to aspire them to build even greater spaces in the future.
Last but not least, we would also like to show our deepest gratitude to our lecturers and
dean, especially our responsible main lecturer of Constructed Landscape, Miss Normah
for providing such a challenging assignment. We would also like to thank all her useful
and valuable advice to make this project a successful and meaningful experience to all of
us.

CL Final Project: Report

  • 1.
    School of Architecture,Building & Design Foundation in Natural and Built Environment (FNBE) April Intake Constructed Landscape [ARC 30203] Final Project (Project 3: Landscape Project) Tutor : Ms. Normah Group Leader : Natalie Ki Xiao Xuan 0318918 Group Members : Philia Chua Yi Sian 0318936 Ryan Kerry Jee Jin Yiing 0318715 Too Mun Fai 0318214 Ameer Farhan 0319304 Ricco Soh Zheng Wei 0319890
  • 2.
    2 Content No. Title Page Content Introduction Siteanalysis Concept Master plan Sectional elevation Perspective drawing Planting plan Costing (Bill of Quantities) Maintenance plan Conclusion 1 2 3 4 5 6 7 8 9 10 11 2 3 4 – 6 7 – 9 10 – 11 12 – 14 15 16 – 17 18 – 19 20 21
  • 3.
    3 Introduction The Landscape Projectis the final project for Constructed Landscape. In this project, we were required to understand basic landscape architecture drawings as a mean of communication and representation of ideas. The objective of this project is to introduce us to the completion of landscape projects from the beginning till the end. It is also aimed to expose us to concepts, analysis, master plans, costing, planting plans, construction and maintenance. In the beginning of the project, we were divided into a group of six and was allowed to choose a site roughly the area of 100m²within our campus. We were then required to study and apply the anatomy of our project accordingly. After analyzing our site, we were tasked to propose a green space which promotes sustainable living. Lastly, we were established to present our proposal on two A2-sized presentation boards and a report as a group.
  • 4.
    4 Site Analysis Our siteis located at the empty space beside Taylor’s University Admission’s Office (behind Taylor’s signage). The area of our site is 7m x 13m, excluding the axial termination point, making 91m²in total. NN
  • 5.
    5 Existing Features ofour Site The existing features of our site includes two vertical columns, supporting a hanging garden which stretches across the entire western side of our site. On the opposite perimeter, runs the side elevation of the Enrolment and Admission’s Office. Accessibility of our Site Our site is easily accessible from the drop-off area (roundabout). The easy access points increase the exposure of green space, thus resulting in the increase of green impact to our lifestyle. Other than that, the flat terrain of our site makes it easier for site enhancements and improvements. This also enables us to have a more balanced distribution of greenery. North Point and Environmental Condition of our Site Furthermore, the spacious vertical area of our site allows vertical planting to be done easily. This also provides a generous open area for comfort. In addition to that, the open space of our site allows natural exposure of sunlight, wind and rain, which provides a perfect environment for healthy growth of vegetation. The north point of our site faces the axial termination point. The sun rises in the East and sets in the West, and at noon, the sun is situated directly above our site; but our site is shielded by a roof. During the afternoon, the sunlight will be shining into our site from the West. The wind blows from the South providing a light breeze throughout our site. Moving on, the rain falls from the North-west region which calls for water-resistant implementations on that particular end of our site. Site Usage Our site is currently rendered redundant, making it a waste of space. Advantages of our Site Our site despite its current lack of attention, provides a few advantages that can be manipulated to be served as a usable green space. To name a few:  It is an untouched open space which is provided by copious amount of sunlight.  It has plenty of vertical space, allowing implementation of vertical planting (existing feature: beautiful hanging garden).  As the area is spacious and unbuilt, there is good ventilation caused by natural wind exposure.  There are plenty of access points, allowing human exposure to the site.
  • 6.
    6 Disadvantages of ourSite Our site has suffered from neglect, resulting being underused and categorized as a wasted space. Other than its lack of human contact, it also has a few disadvantages such as:  It can get hot due to its open space, especially around noon (during 12pm-4pm).  It has been poorly maintained.  As a result of its open space, it also causes it to be exposed to bad weather conditions such as heavy rain during the wet seasons. Client Evaluation of Requirements The concept of this project is to utilize our site as a green space, inclusive of landscape hardscape and softscape. However, it must also be suitable for the potential users of the site. These include the student, scholars, lecturers and office workers of Taylor’s University Lakeside Campus. As such, it should include a few basic requirements to the design and function.  It should be esthetically pleasing.  Practical use of function. (User-friendly)  Introduce green lifestyle.  Enhance natural features of site.  Soften the environment’s hardscape.  Provides a variety of vegetation. This can be achieved through multiple ways, all in which would lead to a successful landscape project with a practical function that would ease the lifestyle of the users and re-establish the site from its previous state.  Introduction of more greenery and vegetation of different types and varieties.  Refurbishing of tiles and implementation of different kinds of ground covers. For example, soil, grass, timber deck and stone.  Improve maintenance of area.  Implement sustainable landscaping designs.
  • 7.
    7 Concept The purpose ofour site for this project is to serve as a waiting area for pick-up/drop-off. The reason we chose this purpose for our site is due to the suitability of our aim. This includes the location of our site being just beside the main drop-off area of Taylor’s University Lakeside Campus. Concept of Project The main concept of our project is to create a sustainable green space within our chosen site. A green space can be defined as a protected or conserved area on which development is indefinitely set aside which serves as an open space reserve which includes the preservation and conservation of a rural nature or historic character in a community or region. The conservation or preservation of an area is for the sake of ecological, environmental, recreational, aesthetic or agricultural interest. Conceptual Drawing #01: 1. Site area – Our site is bordered by a solid and perforated boundary, giving it a visual axis that has dynamic movement. 2. Front – Because of the axis, our site can be divided into two sections. The front faces the perforated boundary. 3. Back – The back faces the solid boundary. 4. Existing building fabric. 5. Axial from approach to axial termination point. 1 2 3 4 5
  • 8.
    8 Conceptual Drawing #02: 1.Column A 2. Column B 3. Front right 4. Front left 5. Intersection – Caused by axis from approach and axis by columns. 6. Back right 7. Back left 1 2 3 4 5 6 7 Axis – Existing from the perforated boundary and solid boundary. Perforated boundary – Caused by the existing row of columns. Solid boundary – Caused by the existing building fabric. Visual focus – Which is uninteresting as it is not being addressed properly, thus causing our site to be wasted in terms of space. Conceptual Drawing #03:
  • 9.
    9 Conceptual Drawing #04: 1.Roof plan 2. Perforated boundary 3. Solid boundary 4. Scale – The ‘space’ formed by the roof and left and right boundaries has a tall volume of more than the human scale, which makes it un-relatable and unfriendly from the immense difference. 1 2 3 4 5 6 7 1 2 3 4 5
  • 10.
    10 Master Plan 500 5001000 500 500200020005000 100030001000 20002000 250013000 5005001000500 3000 1000 3000 7000 1 2 3 4 5 6 7 8 9 10 11 12
  • 11.
    11 1. 5mm diametermixed colorful natural pebble-wash 2. Loose gravel 3. Existing aluminum glazing curtain wall fabric 4. Terra-cotta tile finish 5. 2-tiers fountain to specialists details 6. “Railway sleepers” garden steps 7. 100 x 19mm thick “chengal” wood canopy 8. Existing RC column 9. 5mm diameter mixed colorful natural river pebble wash 10. “Nitro” – Nordic stone GSN03 FOHN (600 x 600mm) – Homogenous non-slip tile laid to fall 11. 100 x 25mm thick “chengal” wood as floorboard 150 x 50mm thick “chengal” floor joists @ 300mm c/c 12. Planter box (750mm high x 500mm wide) in brick wall, complete with drainage pipes discharged to existing channel
  • 12.
  • 13.
    13 1. M.S. bracket 2.100mm thick common brick in 1:3 cement sand mix mortar, plastered ta external and painted to finish 3. M.S. cleat 4. Subsoil perforated earthen drain 5. Sand and gravel 6. Geo-tech net 7. 100 x 50mm thick chengal wood for overhead canopy 8. 150 x 75mm thick chengal floor joists 300mm c/c 9. 100 x 25mm thick chengal floorboard 10. 100 x 50mm thick chengal wood for joists 11. 600 x 450mm service manhole 12. Pump system 13. Modern cube light 14. Green velvet boxwood hedge – trimmed to design
  • 14.
    14 1. Uplighter toilluminate the ceiling – mark the volume in height 2. Pendent light to illuminate waiting area 3. Vertical pendant light to substantiate central axis to soften the vertical volume 4. Backdrop curtain termination 5. Sculpture as the center 6. Overhead canopy 1 2 3 4 5 6
  • 15.
  • 16.
  • 17.
    17 1. Bucida molineti(Spiny Bucida) 2. Buxus green velvet (Green Velvet Boxwood) 3. Juniperus osteosperma (Taylor Juniper) 4. Heliconia latispatha (False Bird-Of Paradise) 5. Cynodon dactylon (Bermudagrass Turf) 6. Hymenocallis littoralis (Spider Lily) 7. Codiaeum variegatum (Croton Plant) 8. Tulipa batalinii (Bronze Charm)
  • 18.
    18 Costing (Bill ofQuantities) Item Description Common Name Botanical Name Size Quantity Rate ( RM ) Total ( RM ) SOFTSCAPE WORKS 1 Shade Tree Spiny Bucida Bucida Molineti 100mm in D 5 50 250 2 Topiary Pom- Pom Euginia Globaless 1.8m 2 302 604 3 Ornamental Tree Frangipani Plumeria 6m 4 155.8 623.2 Taylor Juniper Juniper us osteosperma 1.8m 4 574.95 2299.8 4 Ornamental Shrubs False Bird-Of Paradise Heliconia Latispatha 1.67m 8 47 376 5 Evergreen Shrubs Green Velvet Boxwood Buxus Green Velvet 13m^2 43 54.33 2336.19 6 Shrubs Bermudagrass Turf Cynodon Dactylon 6m^2 36 256.65 9239.4 Croton Plant Codiaeum Variegatum NA 24 112 2688 Spider Lily Hymenocallis Littoralis NA 15 124.8 1872 Bronze Charm Tulipa batalinii NA 30 25.6 768 7 Mulching Soil Grass Pattern Area NA 3m^3 0 0 900 Hedges Area ( West side ) NA 3.6m^3 0 0 1080 Hedges Area ( East side ) NA 3m^3 0 0 900 Staking NA NA NA 11 60 660 HARDSCAPE WORKS Groundcovers Chengal Wood NA 39m^2 95 68.21 6479.95 Chengal Wood Floor Joists NA 300mm c/c NA Chengal Wood NA 100x19mm NA #5 Gravels NA 5mm 1 TON 0 91.1 Nordik Stone GSN03 Fohn NA 1200m^2 60 39.65 2379 Railway Sleepers NA 2m^2 9 9.44 84.96 Ornamental Furniture Cube Outdoors Light NA 165mm^2 2 243 486 Round Stainless NA 9m^2 1 0 2812.8
  • 19.
    19 Steel Fountain Geometrical Sculpture NA 2.3m1 0 1120 Furniture Buckingham Premium Round Teak Picnic Table NA 1.8m 3 4831 14493 Customize Light Fitting With LED Uplighters And LED Pendant Lights NA 1.8mx450mm in D 1 Planter Box NA 750x500 ( 13m^2 ) NA Bergen Benches ( Cement base, Brick wall, Plaster finishing ) NA 1.8m 2234 0 Viglacera Tiles NA 5400mm^2 0.8 CONSTRUCTION WORKS 1 Waterproofing NA NA 7x13 (91m^2) NA 37 3367 2 Electricity NA NA NA NA 24.36 2217 TOTAL COST 58,127.4
  • 20.
    20 Maintenance Plan In orderto practice sustainability, we have based the design and construction of our site on green concepts. This makes our site easier to maintain and sustain. We have tried our best to strike a balance between the percentage of hardscape and softscape in our site. We have strongly emphasized on the use of durable and long-lasting materials to reduce the need to maintain our site financially. Besides that, our site was designed with eco- friendly intentions in mind, in order to reduce the negative effects of our site on the surrounding environment. Furthermore, we have also implemented modern green technology to reduce the use of resources to maintain our site. For example, we have introduced the geo-tech drainage system into our planter boxes to store water efficiently, and at the same time not harming the specified plant. Last but not least, we have also put thought into the energy consumption of our site and has decided to use LED light bulbs in all our lighting circulations. This ultimately reduces the required electrical input of our site and hence realizing our true purpose to create a sustainable site.
  • 21.
    21 Conclusion In conclusion, wehave transformed a seemingly redundant area next to the administrative block into a comfortable and relaxing waiting area for our fellow Taylorians. Our site has been designed to be a better and self-sustainable area that fits the main aim of this project. In the process of completing this project, we have researched a lot on the modern green technologies and sustainable concepts to be implemented into our designs. With relation to that, this project has greatly increased our knowledge and understanding towards the efforts required to create and enhance our environment which helps us a lot in our future career and makes our community a better place to live in. With this, we hope that the community of this university will make full use of this place and appreciate nature through our design. We also hope that our site can enhance their social and study capabilities. We hope that our site can also serve a innovative and creative source of inspiration to our fellow architectural and engineering students in our university and to aspire them to build even greater spaces in the future. Last but not least, we would also like to show our deepest gratitude to our lecturers and dean, especially our responsible main lecturer of Constructed Landscape, Miss Normah for providing such a challenging assignment. We would also like to thank all her useful and valuable advice to make this project a successful and meaningful experience to all of us.