WODEN
TOWN SQUARE
FURZER STREET
CORINNASTREET
KELTIE STREET
FURZERSTREET
EXISTING BUILDING
project
peckvonhartel
pvh
drawing
date
revision
Level6,8-10HobartPlaceCanberraACT2601AustraliaT+61262474211F+61262474210Ecanberra@pvh.com.auABN59453647626
2
06/07/2016
01
EXISTING SITE PLAN
4349
BLOCK 54, SECTION 8, PHILLIP
WODEN
TOWN SQUARE
FURZER STREET
CORINNASTREET
KELTIE STREET
FURZERSTREET
PROPOSED
BUILDING
project
peckvonhartel
pvh
drawing
date
revision
Level6,8-10HobartPlaceCanberraACT2601AustraliaT+61262474211F+61262474210Ecanberra@pvh.com.auABN59453647626
2
06/07/2016
02
SITE PLAN
4349
BLOCK 54, SECTION 8, PHILLIP
1
A B C D E F G H
2
3
4
6
7
8
5
E.1
project
peckvonhartel
pvh
drawing
date
revision
Level6,8-10HobartPlaceCanberraACT2601AustraliaT+61262474211F+61262474210Ecanberra@pvh.com.auABN59453647626
2
06/07/2016
03
GROUND FLOOR PLAN
4349
BLOCK 54, SECTION 8, PHILLIP
RETAIL
425m2
SERVICES
ENTRANCE
SERVICES
CANOPY
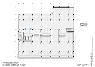
CARPARK
(258 total)
1
A B C D E F G H
2
3
4
6
7
8
5
E.1
project
peckvonhartel
pvh
drawing
date
revision
Level6,8-10HobartPlaceCanberraACT2601AustraliaT+61262474211F+61262474210Ecanberra@pvh.com.auABN59453647626
2
06/07/2016
04
TYPICAL FLOOR PLAN
4349
BLOCK 54, SECTION 8, PHILLIP
CARPARK
(258 total)
project
peckvonhartel
pvh
drawing
date
revision
Level6,8-10HobartPlaceCanberraACT2601AustraliaT+61262474211F+61262474210Ecanberra@pvh.com.auABN59453647626
2
06/07/2016
05
FACADE STUDY
4349
BLOCK 54, SECTION 8, PHILLIP
ESKENAZI HOSPITAL PARKING GARAGE - USA
CANBERRA HOSPITAL PARKING GARAGE - ACT
ALTREE COURT - ACT
TOWN SQUARE
FURZER STREET
CORINNASTREET
project
peckvonhartel
pvh
drawing
date
revision
Level6,8-10HobartPlaceCanberraACT2601AustraliaT+61262474211F+61262474210Ecanberra@pvh.com.auABN59453647626
1
05/07/2016
06
3D PERSPECTIVE
4349
BLOCK 54, SECTION 8, PHILLIP
TOWN SQUARE
FURZER STREET
CORINNASTREET
project
peckvonhartel
pvh
drawing
date
revision
Level6,8-10HobartPlaceCanberraACT2601AustraliaT+61262474211F+61262474210Ecanberra@pvh.com.auABN59453647626
2
06/07/2016
07
3D PERSPECTIVE
4349
BLOCK 54, SECTION 8, PHILLIP
TOWN
SQUARE
TOWN
SQUARE
TOWN
SQUARE
project
peckvonhartel
pvh
drawing
date
revision
Level6,8-10HobartPlaceCanberraACT2601AustraliaT+61262474211F+61262474210Ecanberra@pvh.com.auABN59453647626
1
05/07/2016
08
SHADOW DIAGRAMS - EQUINOX
4349
BLOCK 54, SECTION 8, PHILLIP
EQUINOX
SEPTEMBER - 9AM
EQUINOX
SEPTEMBER - 12PM
EQUINOX
SEPTEMBER - 3PM
TOWN
SQUARE
TOWN
SQUARE
TOWN
SQUARE
project
peckvonhartel
pvh
drawing
date
revision
Level6,8-10HobartPlaceCanberraACT2601AustraliaT+61262474211F+61262474210Ecanberra@pvh.com.auABN59453647626
1
05/07/2016
09
SHADOW DIAGRAMS - SUMMER SOLSTICE
4349
BLOCK 54, SECTION 8, PHILLIP
SUMMER SOLSTICE
DECEMBER - 9AM
SUMMER SOLSTICE
DECEMBER - 12PM
SUMMER SOLSTICE
DECEMBER- 3PM
TOWN
SQUARE
TOWN
SQUARE
TOWN
SQUARE
project
peckvonhartel
pvh
drawing
date
revision
Level6,8-10HobartPlaceCanberraACT2601AustraliaT+61262474211F+61262474210Ecanberra@pvh.com.auABN59453647626
1
05/07/2016
10
SHADOW DIAGRAMS - WINTER SOLSTICE
4349
BLOCK 54, SECTION 8, PHILLIP
WINTER SOLSTICE
JUNE - 9AM
WINTER SOLSTICE
JUNE - 12PM
WINTER SOLSTICE
JUNE - 3PM

Borrowdale house Carpark presentation