D
4
F
B
A
3
2
1 5 6 8
E
7
C
REV.
APPROVED
CHK.
DES.
REV. DATE REVISION DESCRIPTION
CLIENT
LEAD ENGINEER
SCALE DRAWING NUMBER
CHECK DESIGN CHECK DRAWING
DESIGNED BY DRAWN BY
APPROVAL DATE
APPROVAL DATE
APPROVED
CHK.
DES.
REV. DATE REVISION DESCRIPTION REFERENCE DRAWING No.
1:100
0
1:200
5m
10m
0
5m
10m
15m
20m
1:500
10m
0
20m
30m
40m
50m
1:1000
0
100m
50m
1:20
0
0.5m
1m
1.5m
2m
0
1:25
0.5m
1m
1.5m
1:33
1/3
2.5m
2m
0
1m
2m
3m
0
1:50
1m
2m
3m
4m
5m
CAD FILE NAME: P:0CAD000SPEM**
MODEL UPDATED:
DWG. FILE UPDATED:
MANUAL CHANGES MADE: YES NO YES NO YES NO
PROJECT MANAGER
ENGINEERING MANAGER
AREA PROJECT ENGINEER
REFERENCE DRAWINGS
SAFETY SHARE:
APPROVAL DATE
CONTRACT
NO.
SAFETY SHARE :
BA6CVA1.IGR
NOTICE: THIS DRAWING HAS NOT BEEN PUBLISHED AND IS THE SOLE
PROPERTY OF FLUOR AND IS LENT TO THE BORROWER FOR THEIR
CONFIDENTIAL USE ONLY, AND IN CONSIDERATION OF THE LOAN OF THIS
DRAWING, THE BORROWER PROMISES AND AGREES TO RETURN IT UPON
REQUEST AND AGREES THAT IT WILL NOT BE REPRODUCED, COPIED LENT
OR OTHERWISE DISPOSED OF DIRECTLY OR INDIRECTLY, NOR USED FOR
ANY OTHER PURPOSE OTHER THAN WHICH IT IS FURNISHED.
NONE
Apr 2011
240K-C2-
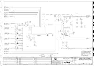
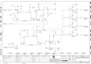
MAIN PROCESS FLOW
SECONDARY PROCESS FLOW
ELECTRICAL TRACING
FLEXIBLE HOSE
ELECTRICAL SIGNAL
SOFTWARE SIGNAL
PROCESS CONNECT LINE
ELECTROMAGNETIC OR
SONIC SIGNAL
PNEUMATIC SIGNAL
HYDRAULIC
CAPILLARY
TELEMETRY SIGNAL
BUS COMMUNICATION
VENDOR PACKAGE
FUTURE
EXISTING
C1A
C1B
C1C
C1D
C1F
C1G
C1H
C1K
C1L
C1M
C2A
C2B
C2C
C2D
C2E
C2G
C2H
C4A
G1A
H0A
H0B
H0C
H0D
H0E
H0F
H0H
H0K
H0L
H0M
H0N
H1A
P0A
R1A
R1B
S1A
S1B
S4A
S7A
TXU
TXH
-
-
-
-
-
-
-
-
-
-
-
-
-
-
-
-
-
-
-
-
-
-
-
-
-
-
-
-
-
-
-
-
-
-
-
-
-
-
-
-
CARBON STEEL
CARBON STEEL
CARBON STEEL
CARBON STEEL
CARBON STEEL
CARBON STEEL
CARBON STEEL
CARBON STEEL
CARBON STEEL
CARBON STEEL
CARBON STEEL
CARBON STEEL
CARBON STEEL
CARBON STEEL
CARBON STEEL
CARBON STEEL
CARBON STEEL
CARBON STEEL
GALVANIZED STEEL
HDPE (SDR 7/DI FTG)
HDPE (SDR 9/SS FTG)
HDPE (SDR 11/DI FTG)
HDPE (SDR 15/DI FTG)
HDPE (SDR 21/DI FTG)
HDPE (FM 200/DI FTG)
HDPE (SDR 15.5)
HDPE (SDR 17)
HDPE (SDR 21)
HDPE (SDR 26)
HDPE (SDR 32)
20 MM HDPE LINED CS
PVC
6 MM RUBBER LINED CS
13 MM RUBBER LINED CS
304L STAINLESS STEEL
304L STAINLESS STEEL
304L STAINLESS STEEL
304 STAINLESS STEEL
CS-12MM URETHANE LINED
CS-15MM HDPE LINED
1034 KPAG @ 82 DEG C
1000 KPAG @ 60 DEG C
1725 KPAG @ 38 DEG C
1965 KPAG @ 38 DEG C
1200 KPAG @ 38 DEG C
1965 KPAG @ 38 DEG C
1380 KPAG @ 38 DEG C
1034 KPAG @ 38 DEG C
1034 KPAG @ 38 DEG C
1900 KPAG @ 38 DEG C
5100 KPAG @ 38 DEG C
3450 KPAG @ 38 DEG C
4480 KPAG @ 38 DEG C
3450 KPAG @ 38 DEG C
4480 KPAG @ 38 DEG C
5100 KPAG @ 38 DEG C
3680 KPAG @ 345 DEG C
5600 KPAG @ 100 DEG C
1034 KPAG @ 82 DEG C
1760 KPAG @ 23 DEG C
1380 KPAG @ 23 DEG C
1035 KPAG @ 23 DEG C
760 KPAG @ 23 DEG C
550 KPAG @ 23 DEG C
1380 KPAG @ 23 DEG C
550 KPAG @ 23 DEG C
450 KPAG @ 23 DEG C
345 KPAG @ 23 DEG C
275 KPAG @ 23 DEG C
100 KPAG @ 49 DEG C
1034 KPAG @ 38 DEG C
100 KPAG @ 60 DEG C
690 KPAG @ 50 DEG C
690 KPAG @ 50 DEG C
1035 KPAG @ 93 DEG C
1035 KPAG @ 100 DEG C
9930 KPAG @ 38 DEG C
34475 KPAG @ 100 DEG C
TEMP CODE - SPEC TBD
TEMP CODE - SPEC TBD
NORMALLY
OPEN CLOSED
GATE VALVE
BALL/ROTARY VALVE
GLOBE VALVE
PLUG VALVE
NEEDLE VALVE
KNIFE GATE VALVE
DIAPHRAGM VALVE
BUTTERFLY VALVE
PINCH VALVE
AUTOMATIC RECIRCULATION VALVE
CHECK VALVE
ANGLE VALVE
3 - WAY VALVE
4 - WAY VALVE
PRESSURE RELIEF
VALVE
VACUUM RELIEF
VALVE
PRESSURE/VACUUM
RELIEF VALVE
LINE SYMBOLS
VALVE SYMBOLS
PIPE MATERIAL CLASSIFICATIONS
SERVICE
CODE
SLURRY
SLC
SL
REAGENTS
RE
RL
RQ
RS
RF
RC
OIL/FUEL & LUBRICATION
OH
OLL
OLH
OT
SEWERS & DRAINS
DR
DRL
SW
SS
UTILITY SERVICE - AIR / GAS
AA
AI
AP
AHP
ALP
N2G
PG
UTILITY SERVICE - WATER
WF
WD
WR
WG
UTILITY SERVICE - FIRE PROTECTION
FW
FP
SERVICE
SLURRY - COARSE
SLURRY - FINE
GENERAL REAGENTS
MILK OF LIME
QUICK LIME (DRY)
SODIUM HYDROSULPHIDE
FROTHER
COLLECTOR
HYDRAULIC OIL
LUBE OIL LOW PRESSURE
LUBE OIL HIGH PRESSURE
THERMAL FLUID
DRAINS AND VENTS
LAB DRAINS AND VENTS
SEWER GREY WATER
SEWER SANITARY
ATMOSPHERIC AIR
INSTRUMENT AIR
PLANT AIR
HIGH PRESSURE AIR
LOW PRESSURE AIR
NITROGEN
PROCESS GAS
FRESH WATER
DOMESTIC WATER
RECLAIM / PROCESS WATER
GLAND SEAL WATER
FIRE PROTECTION WATER
FIRE PROTECTION GAS
FLUID SERVICE CODES
PIPE LINE DESIGNATION
C2 - 3110 - SLC - 1234 - R1A - 24" - N
INSULATION PURPOSE:
(H) - HEAT CONSERVATION
(P) - SAFETY (PERSONNEL PROTECTION)
(ET)- ELECTRICALLY TRACED & INSULATED
(N) - NONE
PIPE SIZE
PIPE MATERIAL CLASS
PIPE SEQUENCE NUMBER
FLUID CODE
AREA (UNIT) CODE
PROJECT AREA CODES
AREA CODE AREA TITLE
3100
3200
3300
3400
3500
3600
3700
3800
3900
4000
5000
5100
5200
5300
5400
5500
5600
5700
5800
6000
PRIMARY CRUSHING & COARSE ORE HANDLING
SECONDARY AND TERTIARY CRUSHING
GRINDING
COPPER FLOTATION
MOLY PLANT
CONCENTRATE DEWATERING AND LOADOUT
TAILING THICKENING
TAILING HANDLING & RECLAIM WATER
PROCESS UTILITIES & REAGENTS
TAILING IMPOUNDMENT & SEEPAGE CTRL
UTILITIES & ANCILLARIES
FRESH WATER SYSTEM
ELECTRICAL POWER SYSTEM
FIRE PROTECTION SYSTEM
POTABLE WATER SYSTEM
SEWAGE SYSTEMS
COMMUNICATION SYSTEMS
EX. ANCHILLARY FACILITIES
CONCENTRATOR ANCILLARY FACILITIES
OFFSITE FACILITIES
FLUJO PRINCIPAL DE PROCESO
FLUJO SECUNDARIO DE PROCESO
TRACING ELECTRICO
MANGUERA FLEXIBLE
SENAL ELECTRICA
SENAL DE SOFTWARE
LINEA DE CONEXION DE PROCESO
SENAL ELECTROMAGNETICA
O DE SONIDO
SENAL NEUMATICA
HIDRAULICA
CAPILAR
SENAL TELEMETRICA
DISPOSITVO DE RED
SKID O CONJUNTO POR VENDEDOR
FUTURO
EXISTENTE
C1A
C1B
C1C
C1D
C1F
C1G
C1H
C1K
C1L
C1M
C2A
C2B
C2C
C2D
C2E
C2G
C2H
C4A
G1A
H0A
H0B
H0C
H0D
H0E
H0F
H0H
H0K
H0L
H0M
H0N
H1A
P0A
R1A
R1B
S1A
S1B
S4A
S7A
TXU
TXH
-
-
-
-
-
-
-
-
-
-
-
-
-
-
-
-
-
-
-
-
-
-
-
-
-
-
-
-
-
-
-
-
-
-
-
-
-
ACERO AL CARBONO
ACERO AL CARBONO
ACERO AL CARBONO
ACERO AL CARBONO
ACERO AL CARBONO
ACERO AL CARBONO
ACERO AL CARBONO
ACERO AL CARBONO
ACERO AL CARBONO
ACERO AL CARBONO
ACERO AL CARBONO
ACERO AL CARBONO
ACERO AL CARBONO
ACERO AL CARBONO
ACERO AL CARBONO
ACERO AL CARBONO
ACERO AL CARBONO
ACERO AL CARBONO
ACERO GALVANIZADO
PAD (SDR 7/DI FTG)
PAD (SDR 9/SS FTG)
PAD (SDR 11/DI FTG)
PAD (SDR 15/DI FTG)
PAD (SDR 21/DI FTG)
PAD (FM 200/DI FTG)
PAD (SDR 15.5)
PAD (SDR 17)
PAD (SDR 21)
PAD (SDR 26)
PAD (SDR 32)
REVESTIMIENTO PAD AC 20 MM
CLORURO DE POLIVINILO
REVESTIMIENTO DE GOMA AC 6 MM
REVESTIMIENTO DE GOMA AC 13 MM
ACERO INOXIDABLE 304L
ACERO INOXIDABLE 304L
ACERO INOXIDABLE 304L
ACERO INOXIDABLE 304
REVESTIMIENTO DE URETANO AC 12 MM
REVESTIMIENTO PAD CS 15 MM
1034 KPAG @ 82 GRADOS CENTIGRADOS
1000 KPAG @ 60 GRADOS CENTIGRADOS
1725 KPAG @ 38 GRADOS CENTIGRADOS
1965 KPAG @ 38 GRADOS CENTIGRADOS
1200 KPAG @ 38 GRADOS CENTIGRADOS
1965 KPAG @ 38 GRADOS CENTIGRADOS
1380 KPAG @ 38 GRADOS CENTIGRADOS
1034 KPAG @ 38 GRADOS CENTIGRADOS
1034 KPAG @ 38 GRADOS CENTIGRADOS
1900 KPAG @ 38 GRADOS CENTIGRADOS
5100 KPAG @ 38 GRADOS CENTIGRADOS
3450 KPAG @ 38 GRADOS CENTIGRADOS
4480 KPAG @ 38 GRADOS CENTIGRADOS
3450 KPAG @ 38 GRADOS CENTIGRADOS
4480 KPAG @ 38 GRADOS CENTIGRADOS
5100 KPAG @ 38 GRADOS CENTIGRADOS
3680 KPAG @ 345 GRADOS CENTIGRADOS
5600 KPAG @ 100 GRADOS CENTIGRADOS
1034 KPAG @ 82 GRADOS CENTIGRADOS
1760 KPAG @ 23 GRADOS CENTIGRADOS
1380 KPAG @ 23 GRADOS CENTIGRADOS
1035 KPAG @ 23 GRADOS CENTIGRADOS
760 KPAG @ 23 GRADOS CENTIGRADOS
550 KPAG @ 23 GRADOS CENTIGRADOS
1380 KPAG @ 23 GRADOS CENTIGRADOS
550 KPAG @ 23 GRADOS CENTIGRADOS
450 KPAG @ 23 GRADOS CENTIGRADOS
345 KPAG @ 23 GRADOS CENTIGRADOS
275 KPAG @ 23 GRADOS CENTIGRADOS
100 KPAG @ 49 GRADOS CENTIGRADOS
1034 KPAG @ 38 GRADOS CENTIGRADOS
100 KPAG @ 60 GRADOS CENTIGRADOS
690 KPAG @ 50 GRADOS CENTIGRADOS
690 KPAG @ 50 GRADOS CENTIGRADOS
1035 KPAG @ 93 GRADOS CENTIGRADOS
1035 KPAG @ 100 GRADOS CENTIGRADOS
9930 KPAG @ 38 GRADOS CENTIGRADOS
34475 KPAG @ 100 GRADOS CENTIGRADOS
CODIGO DE TEMPERATURA - A SER DETERMINADO
CODIGO DE TEMPERATURA - A SER DETERMINADO
NORMALMENTE
ABIERTA CERRADA
VALVULA DE COMPUERTA
VALVULA DE BOLA
VALVULA DE GLOBO
VALVULA DE CONO
VALVULA DE AGUJA
VALVULA DE CUCHILLO
VALVULA DE DIAFRAGMA
VALVULA DE MARIPOSA
VALVULA DE PINCH
VALVULA DE RECIRCULACION AUTOMATICA
VALVULA DE RETENCION
VALVULA DE ANGULO
VALVULA DE 3-VIAS
VALVULA DE 4-VIAS
VALVULA ALIVIO
DE PRESION
VALVULA ALIVIO
DE VACIO
VALVULA ALIVIO
DE PRESION/VACIO
SIMBOLOS DE LINEAS
SIMBOLOS PARA VALVULAS
CLASIFICACION DE MATERIALS DE TUBERIA
CODIGO DE
SERVICIO
PULPA
SLC
SL
REACTIVOS
RE
RL
RQ
RS
RF
RC
COMBUSTIBLES Y LUBRICANTE
OH
OLL
OLH
OT
RESIDUALES Y DRENAJES
DR
DRL
SW
SS
SERVICIOS GENERALES - AIRE/GAS
AA
AI
AP
AHP
ALP
N2G
PG
SERVICIOS GENERALES - AGUA
WF
WD
WR
WG
SERVICIOS GENERALES - PROTECCION CONTRA INCENDIOS
FW
FP
SERVICIO
PULPA FRESCA
PULPA FINA
REACTIVOS EN GENERAL
LECHADA DE CAL
CAL (SECA)
HYDROSULFURO DE SODIO
ESPUMANTE
COLECTOR
ACEITE HYDRAULICO
ACEITE DE LUBRICACION BAJA PRESION
ACEITE DE LUBRICACION ALTA PRESION
FLUIDO TERMICO
DRENAJES Y VENTEOS
DRENAJES Y VENTEOS DEL LABORATORIO
RESIDUOS DE AGUAS NEGRAS
RESIDUOS DE AGUAS SANITARIAS
AIRE ATMOSFERICO
AIRE PARA INSTRUMENTOS
AIRE DE PLANTA
AIRE DE ALTA PRESION
AIRE DE BAJA PRESION
NITROGENO
GAS DE PROCESO
AGUA FRESCA
AGUA DE USO DOMESTICO
AGUA DE PROCESOS / RECUPERACION
AGUA DE SELLOS PRENSAESTOPAS
AGUA PARA PROTECCION DE INCENDIOS
GAS PARA PROTECCION DE INCENDIOS
CODIGOS SERVICIOS DE TUBERIAS
DESIGNACION LINEA DE TUBERIAS
C2 - 3110 - SLC - 1234 - R1A - 24" - N
TIPO DE AISLACION:
(H) - CONSERVACION DE CALOR
(P) - SEGURIDAD (PROTECCION DE PERSONAL)
(N) - NINGUNA AISLACION
TAMANO TUBERIA (EN PULGADAS)
CLASIFICACION MATERIAL DE TUBERIA
NUMERO CORRELACION DE TUBERIA
CODIGO DE SERVICIO
CODIGO DE AREA
CODIGOS AREA DE PROYECTOS
CODIGOS
AREA
TITULO AREA
3100
3200
3300
3400
3500
3600
3700
3800
3900
4000
5000
5100
5200
5300
5400
5500
5600
5700
5800
6000
CHANCADO PRIMARIO Y MANEJO DE MINERAL GRUESO
CHANCADO SECUNDARIO Y TERCIARIO
MOLIENDA
FLOTACION DE COBRE
PLANTA DE MOLIBDENO
FILTRADO Y DESPACHO DE CONCENTRADO
MANEJO DE RELAVES Y RECUPERACION DE AGUA
ESPESAMIENTO DE RELAVES
SERVICIOS DE PROCESOS Y REATIVOS
REPRESAMIENTO DE RELAVES Y CONTROL DE INFILTRACION
SERVICIOS Y AUXILIARES
SISTEMA DE AGUA FRESCA
SISTEMA DE ALIMENTACION ELECTRICA
SISTEMA DE PROTECCION DE INCENDIOS
SISTEMA DE AGUA POTABLE
SISTEMAS DE RESIDUALES
SISTEMAS DE COMUNICACION
INSTALACIONES AUXILIARES EXISTENTES
INSTALACIONES AUXILIARES DEL CONCENTRADOR
INSTALACIONES FUERA DE PLANTA
AG
KM
LT
ISSUED FOR CLIENT REVIEW
15-Dec-11
B
RP
ISSUED FOR COMBINED REVIEW
08-Jul-11
A
12/15/2011
K. MUNDY
A.J. GUNSON
T. OH
L. TAMELIN
12/19/2011
10:24:20
AM
WBS: 0000
B
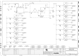
PIPING AND INSTRUMENTATION DIAGRAM
GENERAL
0000-25J-001
LEGEND AND SYMBOLS 1 OF 3
T1
T1
T1
T1
T1
T1
T1
T1
T1
T1
T1
T1
T
LOAD CELL
0000
T
M
IMAGE
0000
0000
PP
M
0000
PP
C
C
IMAGE
RS
T T
RS
DESCRIPCION
DESCRIPCION 1
DESCRIPCION 2
1055
COMMODITY DESCRIPTION
TO/FROM DESCRIPTION1
TO/FROM DESCRIPTION2
1054
SIMBOLOS DE SEPARACION
PIPING SEQUENCE NO. BREAK
PIPE MATERIAL CLASS
SUPPLY RESPONSIBILITY
INSULATION REQUIREMENTS
CONSTRUCTION STATUS
CELDA DE CARGA
12" KG - 1234 NUMERO IDENTIFICACION VALVULA
TIPO DE VALVULA
TAMANO DE VALVULA
(USADA SOLO SI EL TAMANO NO ES OBVIO)
TP
UNIQUE IDENTIFICATION NUMBER
EQUIPMENT TYPE
AREA (UNIT) CODE
CONCENTRATOR AREA
AV - AIRE O ALIVIO DE
VACIO DE AIRE
BA - BOLA
CH - RETENCION
DP - DIAFRAGMA
BU - MARIPOSA
CONEXIONES FUERA DE PLANO
C2 - 3110 - CLA - 203
FILTER
RUPTURE DISC
WEIR
QUICK DISCONNECT
DOLE VALVE
AIR / VACUUM RELEASE VALVE
GEARBOX
SILENCER
STEAM TRAP
MOISTURE TRAP
FLAME ARRESTER
DEMISTER /
COALESCING MEDIA
GOOSE NECK VENT
VESSEL VENT
C/W BIRD SCREEN
SWING ELBOW
IMAGE ANALYSIS CAMERA
DRAWING CONTINUITY
NUMBER ASSIGNED BY
ORIGINATING DRAWING.
(LINE CONSISTENCY CHECKING)
SIMBOLOS DE BOMBAS
VERTICAL TURBINE PUMP SUBMERSIBLE PUMP
SPECIALTY ITEMS
VALVE DESIGNATION
MT
PUMP SYMBOLS
GENERAL COMPONENTS
GA - COMPUERTA
KG - CUCHILLO
GL - GLOBO
NL - AGUJA
PL - MACHO
PN - PINCH
ST
EQUIPMENT CODES
DESIGNACION DE VALVULAS
VALVE SIZE
(USED ONLY IF SIZE NOT OBVIOUS)
MT
12" KG - 1234
BLOWER/COMPRESSOR
ST
COMPONENTES GENERALES
NUMERO DE EQUIPO
CCTV
THERMOWELL
FLOW ORIFICE (FLANGED)
MAGNETIC FLOW METER
CORIOLIS FLOW METER
THERMAL FLOW METER
PITOT FLOW METER
(ANNUBAR)
POSITIVE DISPL. METER
SONIC FLOW METER
TURBINE FLOW METER
VORTEX FLOW METER
VENTURI
ROTAMETER
(VARIABLE AREA FLOW METER)
OTHER IN-LINE DEVICE
DART VALVE
SP - 3450 - 001
SEQUENCE NUMBER
AREA NUMBER
FLANGE
BLIND FLANGE
CAP
CONCENTRIC REDUCER
ECCENTRIC REDUCER
SPECTACLE BLIND
HOSE CONNECTION
"Y" STRAINER
BASKET STRAINER
CONE STRAINER
DUPLEX STRAINER
LUBRICATOR FILTER
EXPANSION JOINT
REMOVABLE SPOOL PIECE
SPRAY NOZZLE
TRAP
TIE POINT
CCTV CAMERA
SP - 3450 - 001
NUMERO CONSECUTIVO
NUMERO DE AREA
C2 - 3110 - CLA - 203
SLOPE
SELF DRAIN
FILTRO
DISCO DE RUPTURA
VERTEDERO
DESCONEXION RAPIDA
VALVULA DOLE
(P/PRENSAESTOPAS)
VALVULA DE ALIVIO
DESCARGA DE AIRE
CAJA DE ENGRANAJES
SILENCIADOR
TRAMPA DE VAPOR
TRAMPA DE HUMEDA
ARRESTA LLAMAS
ANTINEBLINA/
ELEMENTO COAGULACION
VENTEO CUELLO DE GANSO
VENTEO DE RECIPIENTE
C/MALLA PARA PAJAROS
CODO GIRATORIO
IMAGEN DE ANALISIS DE CAMARA
GA - GATE
KG - KNIFE
GL - GLOBE
NL - NEEDLE
PL - PLUG
PN - PINCH
POSITIVE DISPLACEMENT PUMP
AV - AIR OR AIR
VACUUM RELIEF
BA - BALL
CH - CHECK
DP - DIAPGHRAGM
BU - BUTTERFLY
TERMOPOZO
PLACA ORIFICIO
(CON BRIDA)
MEDIDOR DE FLUJO MAGNETICO
MEDIDOR DE FLUJO TIPO CORIOLIS
MEDIDOR DE FLUJO TERMICO
MEDIDOR DE FLUJO
TIPO PITOT (ANNUBAR)
MEDIDOR POR DESPLAZAMIENTO
POSITIVO
MEDIDOR DE FLUJO PROPAGACION SONICA
MEDIDOR DE FLUJO TIPO TURBINA
MEDIDOR DE FLUJO TIPO VORTEX
VENTURI
ROTAMETRO
(MEDIDOR DE FLUJO DE AREA VARIABLE)
OTRO ELEMENTO EN LINEA
VALVULA DE DARDO
BREAK SYMBOLS
NUMERO DE IDENTIFICACION UNICO
TIPO DE EQUIPO
CODIGO DE AREA
AREA DEL CONCENTRADOR
PLANO NUMERO
DE CONTINUIDAD
NUMERO ASIGNADO POR
EL GENERADOR DEL PLANO
(PARA CRUZAR PLANOS Y
CHEQUEAR CONTINUIDAD)
NUMERO
PLANO DE CONEXION
VALVE IDENTIFICATION NUMBER
VALVE TYPE
BOMBA VERTICAL
DE TURBINA
BOMBA CENTRIFUGA
CONNECTOR
DESCRIPTION (TWO LINES ONLY)
W/ EQUIPMENT NUMBER
COMMODITY DESCRIPTION
CCTV
OFF-PAGE CONNECTORS
SLOPE
VENTILADOR/COMPRESOR
BOMBA VERTICAL
DE SUMIDERO
SELF DRAIN
PUNTO DE MUESTREO
PUNTO DE PRUEBA
(POR EJEMPLO PUNTO
DE PRUEBA DE PRESION)
BOCINA ALARMA AUDIBLE
SELLO DE DIAFRAGMA
TUBERIA INCLINADA
TUBERIA DE AUTO-DRENAJE
INTERRUPTOR VORTEX
DUCHA DE SEGURIDAD CON
ESTACION PARA LAVADO DE OJOS
GRIFO
DESCRIPCION
CONECTOR (SOLO DOS LINEAS)
CON NUMERO DE EQUIPO
G
BOMBA SUMERGIBLE
G
ITEMS ESPECIALES
COMMODITY DESCRIPTION
SAMPLE POINT
TEST POINT
(EG. PRESSURE
TEST POINT)
HORN AUDIBLE ALARM
DIAPHRAGM SEAL
SLOPING PIPE
SELF DRAINING PIPE
VORTEX BREAKER
SAFETY SHOWER /
EYE WASH STATION
FIRE HYDRANT
VERTICAL SUMP PUMP
CONNECTING
DRAWING NUMBER
TP
BOMBA DE DESPLAZAMINETO POSITIVO
DEFINE LINEAS DE SEPARACION ES DECIR
MATERIAL, CLASE, AREA, NRO SECUENCIA
DE TUBERIA, ETC.
CLASE MATERIAL DE TUBERIAS
LIMITE DE RESPONSIBILIDAD DE SUMINISTRO
REQUERIMIENTOS DE AISLACION
LIMITE DE ESTADO DE CONSTRUCCION
CENTRIFUGAL PUMP
BRIDA
BRIDA CIEGA
TAPA
REDUCCION CONCENTRICA
REDUCCION EXCENTRICA
DISCO CIEGO
CONEXION DE MANGUERA
FILTRO "Y"
FILTRO DE CANASTA
FILTRO DE CONO
FILTRO DOBLE
FILTRO DE LUBRICADOR
JUNTA DE EXPANSION
CARRATEL MOVIBLE
BOQUILLA ROCIADORA
TRAMPA
PUNTO DE ENLACE
CAMARA CIRCUITO CERRADO
DE TV (CCTV)
AG
KM
LT
ISSUED FOR CLIENT REVIEW
15-Dec-11
B
RP
ISSUED FOR COMBINED REVIEW
08-Jul-11
A
12/15/2011
K. MUNDY
A.J.GUNSON
T. OH
L. TAMELIN
12/19/2011
10:25:25
AM
WBS: 0000
B
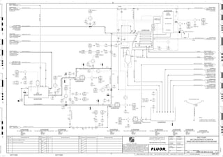
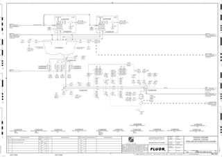
PIPING AND INSTRUMENTATION DIAGRAM
GENERAL
0000-25J-002
LEGEND AND SYMBOLS 2 OF 3
D
4
F
B
A
3
2
1 5 6 8
E
7
C
REV.
APPROVED
CHK.
DES.
REV. DATE REVISION DESCRIPTION
CLIENT
LEAD ENGINEER
SCALE DRAWING NUMBER
CHECK DESIGN CHECK DRAWING
DESIGNED BY DRAWN BY
APPROVAL DATE
APPROVAL DATE
APPROVED
CHK.
DES.
REV. DATE REVISION DESCRIPTION REFERENCE DRAWING No.
1:100
0
1:200
5m
10m
0
5m
10m
15m
20m
1:500
10m
0
20m
30m
40m
50m
1:1000
0
100m
50m
1:20
0
0.5m
1m
1.5m
2m
0
1:25
0.5m
1m
1.5m
1:33
1/3
2.5m
2m
0
1m
2m
3m
0
1:50
1m
2m
3m
4m
5m
CAD FILE NAME: P:0CAD000SPEM**
MODEL UPDATED:
DWG. FILE UPDATED:
MANUAL CHANGES MADE: YES NO YES NO YES NO
PROJECT MANAGER
ENGINEERING MANAGER
AREA PROJECT ENGINEER
REFERENCE DRAWINGS
SAFETY SHARE:
APPROVAL DATE
CONTRACT
NO.
SAFETY SHARE :
BA6CVA1.IGR
NOTICE: THIS DRAWING HAS NOT BEEN PUBLISHED AND IS THE SOLE
PROPERTY OF FLUOR AND IS LENT TO THE BORROWER FOR THEIR
CONFIDENTIAL USE ONLY, AND IN CONSIDERATION OF THE LOAN OF THIS
DRAWING, THE BORROWER PROMISES AND AGREES TO RETURN IT UPON
REQUEST AND AGREES THAT IT WILL NOT BE REPRODUCED, COPIED LENT
OR OTHERWISE DISPOSED OF DIRECTLY OR INDIRECTLY, NOR USED FOR
ANY OTHER PURPOSE OTHER THAN WHICH IT IS FURNISHED.
NONE
Apr 2011
240K-C2-
D
4
F
B
A
3
2
1 5 6 8
E
7
C
REV.
APPROVED
CHK.
DES.
REV. DATE REVISION DESCRIPTION
CLIENT
LEAD ENGINEER
SCALE DRAWING NUMBER
CHECK DESIGN CHECK DRAWING
DESIGNED BY DRAWN BY
APPROVAL DATE
APPROVAL DATE
APPROVED
CHK.
DES.
REV. DATE REVISION DESCRIPTION REFERENCE DRAWING No.
1:100
0
1:200
5m
10m
0
5m
10m
15m
20m
1:500
10m
0
20m
30m
40m
50m
1:1000
0
100m
50m
1:20
0
0.5m
1m
1.5m
2m
0
1:25
0.5m
1m
1.5m
1:33
1/3
2.5m
2m
0
1m
2m
3m
0
1:50
1m
2m
3m
4m
5m
CAD FILE NAME: P:0CAD000SPEM**
MODEL UPDATED:
DWG. FILE UPDATED:
MANUAL CHANGES MADE: YES NO YES NO YES NO
PROJECT MANAGER
ENGINEERING MANAGER
AREA PROJECT ENGINEER
REFERENCE DRAWINGS
SAFETY SHARE:
APPROVAL DATE
CONTRACT
NO.
SAFETY SHARE :
BA6CVA1.IGR
NOTICE: THIS DRAWING HAS NOT BEEN PUBLISHED AND IS THE SOLE
PROPERTY OF FLUOR AND IS LENT TO THE BORROWER FOR THEIR
CONFIDENTIAL USE ONLY, AND IN CONSIDERATION OF THE LOAN OF THIS
DRAWING, THE BORROWER PROMISES AND AGREES TO RETURN IT UPON
REQUEST AND AGREES THAT IT WILL NOT BE REPRODUCED, COPIED LENT
OR OTHERWISE DISPOSED OF DIRECTLY OR INDIRECTLY, NOR USED FOR
ANY OTHER PURPOSE OTHER THAN WHICH IT IS FURNISHED.
NONE
Apr 2011
240K-C2-
D
4
F
B
A
3
2
1 5 6 8
E
7
C
REV.
APPROVED
CHK.
DES.
REV. DATE REVISION DESCRIPTION
CLIENT
LEAD ENGINEER
SCALE DRAWING NUMBER
CHECK DESIGN CHECK DRAWING
DESIGNED BY DRAWN BY
APPROVAL DATE
APPROVAL DATE
APPROVED
CHK.
DES.
REV. DATE REVISION DESCRIPTION REFERENCE DRAWING No.
1:100
0
1:200
5m
10m
0
5m
10m
15m
20m
1:500
10m
0
20m
30m
40m
50m
1:1000
0
100m
50m
1:20
0
0.5m
1m
1.5m
2m
0
1:25
0.5m
1m
1.5m
1:33
1/3
2.5m
2m
0
1m
2m
3m
0
1:50
1m
2m
3m
4m
5m
CAD FILE NAME: P:0CAD000SPEM**
MODEL UPDATED:
DWG. FILE UPDATED:
MANUAL CHANGES MADE: YES NO YES NO YES NO
PROJECT MANAGER
ENGINEERING MANAGER
AREA PROJECT ENGINEER
REFERENCE DRAWINGS
SAFETY SHARE:
APPROVAL DATE
CONTRACT
NO.
SAFETY SHARE :
BA6CVA1.IGR
NOTICE: THIS DRAWING HAS NOT BEEN PUBLISHED AND IS THE SOLE
PROPERTY OF FLUOR AND IS LENT TO THE BORROWER FOR THEIR
CONFIDENTIAL USE ONLY, AND IN CONSIDERATION OF THE LOAN OF THIS
DRAWING, THE BORROWER PROMISES AND AGREES TO RETURN IT UPON
REQUEST AND AGREES THAT IT WILL NOT BE REPRODUCED, COPIED LENT
OR OTHERWISE DISPOSED OF DIRECTLY OR INDIRECTLY, NOR USED FOR
ANY OTHER PURPOSE OTHER THAN WHICH IT IS FURNISHED.
NONE
Apr 2011
240K-C2-
/
0000
0000
FIELD MOUNTED
INSTRUMENT
FRONT OF PANEL
INSTRUMENT
(OPERATOR ACCESSIBLE)
BACK OF PANEL
INSTRUMENT
(OPERATOR INACCESSIBLE)
CONTROL SYSTEM
DISPLAY/FUNCTION
CONTROL SYSTEM
(OPERATOR INACCESSIBLE)
PLC OPERATOR ACCESIBLE
COMPUTER SYSTEM
(ADVANCE CONTROLS)
SOFTWARE
INTERLOCK
HARDWARE
INTERLOCK
INTERLOCK MODIFIER/FUNCTION
AND, OR - LOGIC FUNCTION
I - UNDEFINED LOGIC INTERLOCK
K - TIMER FUNCTION
R - RESET
0000
ALARM/STROBE LIGHT
R - RED
G - GREEN
Y - YELLOW
INSTRUMENT AIR SUPPLY
PLANT AIR SUPPLY
ELECTRIC SUPPLY
EMERGENCY POWER SUPPLY
ANTENNA
COMPUTER (INPUT/OUTPUT)
I/O CODE
I - CURRENT H - HYDRAULIC
E- VOLTAGE F - FREQUENCY
P - PNEUMATIC R - RESISTANCE
D- DIGITAL A - ANALOG
0000
AI
HH
H
L
LL
HIGH HIGH LEVEL INDICATION
HIGH LEVEL INDICATION
LOW LEVEL INDICATION
LOW LOW LEVEL INDICATION
TO BE USED FOR NON CRITICAL, NON INTERLOCKED,
VISUAL ALARM IN CONTROL ROOM
NOTES:
1. ALL OPTIONS FOR " PANEL DESIGNATION " ARE AVAILABLE FOR DCS.
2. LOCAL CONTROL STATIONS FOR ALL MOTOR ARE IMPLIED AND
THEREFORE NOT SHOWS.
3. " V " INSTRUMENTATION FOR EQUIPMENT SUPPLIED WITH
VENDOR PACKAGE.
E/H
3 - WAY
SOLENOID VALVE
4 - WAY
SOLENOID VALVE
4 - WAY DUAL
SOLENOID VALVE
M
S
PISTON
MOTOR
SOLENOID
POST INDICATOR
VALVE
HANDJACK OR
HANDWHEELL
SELF CONTAINED
PRESSURE REGULATOR
SELF CONTAINED
PRESSURE REGULATOR
DIAPHRAGM ELECTRO-HYDRAULIC
INSTRUMENTATION SYMBOLS
VALVE OPERATOR SYMBOLS
CONTROL SYSTEMS ABBREVATIONS
L
LL
L/R
L/O/R
LHS
MAN
NC
NO
OP
OP/CL
P1
P2
PERM
PLS
RV
RATIO
RDY
RHS
RM
RUN
RSP
RST
RTD
SEL
SL
SP
ST
STA
ST/SP
T/C
UP
UP/DN
V
A/M
ACK
AFD
ASD
BP/VS
CL
CWB
DCS
DIR
DN
EF
FC
FI
FL
FLT
FO
F/R
F/O/R
F/O/S
FS
FW
H
HH
H/O/A
H/O/R
H/LO
HS
HSS
I/D
J
JF/JS
JR/JF
LO
LC
- LOW
- LOW LOW
- LOCAL/REMOTE
- LOCAL/OFF/REMOTE
- LEFT HAND SIDE
- MANUAL
- NORMALLY CLOSED
- NORMALLY OPEN
- OPEN
- OPEN CLOSE
- PRIORITY 1
- PRIORITY 2
- PERMISSIVE
- PROGRAMMABLE
LOGIC CONTROLLER
- REVERSE
- RATIO CONTROL
- READY
- RIGHT HAND SIDE
- REMOTE
- RUNNING
- REMOTE SET POINT
- RESET
- RESISTANCE TEMPERATURE DEVICE
- SELECTOR SWITCH (UNDEFINED)
- SLOW
- STOP
- START
- STATUS
- START/STOP
- THERMOCOUPLE
- UP (RAISE)
- UP/DOWN (RAISE/LOWER)
- VENDOR SUPPLIED (NOTE 3)
- AUTO/MANUAL
- ACKNOWLEDGE
- ADJUSTABLE FREQUENCY DRIVE
- ADJUSTABLE SPEED DRIVE
- BYPASS/VARIABLE SPEED
- CLOSE
- CHAIN WHEEL BABBIT
- DISTRIBUTED CONTROL SYSTEM
- DIRECTION
- DOWN (LOWER)
- ELECTRICAL FAULT
- FAIL CLOSED
- FAIL INDETERMINATE
- FAILT LAST
- FAULT
- FAIL OPEN
- FORWARD/REVERSE
- FORWARD/OFF/REVERSE
- FAST/OFF/SLOW
- FAST
- FORWARD
- HIGH
- HIGH HIGH
- HAND/OFF/AUTO
- HAND/OFF/REMOTE
- HIGH/LOW
- HAND SWITCH PUSH BUTTON
OR SELECTION SWITCH
- HAND SAFETY SWITCH
EMERGENCY STOP
- INCREASE/DECREASE
- JOG
- JOG FAST/JOG SLOW
- JOG REVERSE/JOG FORWARD
- LOCKED OPEN
- LOCKED CLOSE
INSTRUMENT NUMBER IDENTIFICATION
0000
12345 A
FSL
0000 FSL 12345 A
INSTRUMENT SUFFIX
INSTRUMENT LOOP NUMBER
LAST 3 DIGITS OF DRAWING NUMBER
INSTRUMENT MODIFIER (SEE TABLE BELOW)
MEASURED VARIABLE (SEE TABLE BELOW)
AREA (UNIT) CODE
EACH INSTRUMENT IS IDENTIFIED BY A COMBINATION OF LETTERS AND
NUMBERS. THE LETTERS ARE SELECTED FROM THE TABLE BELOW TO
CLASSIFY THE INSTRUMENT FUNCTION. THE LETTERS ARE FOLLOWED
BY A LOOP NUMBER.
THE LOOP NUMBER WILL BE COMMON TO ALL INSTRUMENTS WITHIN THAT
LOOP. A LOOP MODIFIER (LETTER) IS ADDED TO DIFFERENTIATE BETWEEN
INSTRUMENTS BEARING THE SAME LETTER PREFIX WITHIN ANY GIVEN LOOP.
MEASURED OR
INITIATING VARIABLE
ANALYSIS
BURNER, COMBUSTION
CONDUCTIVITY
DENSITY
VOLTAGE
FLOW RATE
GAUGING (DIMENSIONAL)
HAND ACTUATED
CURRENT (ELECTRICAL)
POWER
TIME OR TIME SCHEDULE
LEVEL
MOISTURE
METAL DETECTOR
TORQUE
PRESSURE OR VACUUM
QUANTITY
RADIATION
SPEED OR FREQUENCY
TEMPERATURE
MULTIVARIABLE
VIBRATION
WEIGHT, FORCE
UNCLASSIFIED
EVENT, STATE OR PRESENCE
POSITION, DIMENSION
A
B
C
D
E
F
G
H
I
J
K
L
M
N
O
P
Q
R
S
T
U
V
W
X
Y
Z
MODIFIER
-
-
-
DIFFERENTIAL DEVIATION
-
RATIO
-
-
-
SCAN
TIME RATE OF CHANGE
-
MOMENTARY
-
-
-
INTEGRATE OR TOTALIZE
-
SAFETY
-
-
-
-
-
-
-
READOUT OR
PASSIVE FUNCTION
ALARM
-
-
-
SENSOR OR PRIMARY ELEMENT
-
GLASS OR VIEWING DEVICE
-
INDICATOR
-
-
LIGHT
-
-
ORIFICE
POINT (TEST) CONNECTION
-
RECORD
-
-
MULTIFUNCTION
-
WELL
-UNCLASSIFIED
-
-
OUTPUT FUNCTION
-
-
CONTROLLER
-
-
-
-
-
-
-
CONTROL STATION
-
-
-
-
-
-
-
SWITCH
TRANSMITTER
MULTIFUNCTION
VALVE, DAMPER, LOUVER
-
-
RELAY, COMPUTE, CONVERT
DRIVER, ACTUATOR, FINAL
CONTROL ELEMENT
MODIFIER
-
-
CLOSE
-
-
-
-
HIGH
-
-
-
LOW
MIDDLE, INTERMEDIATE
-
OPEN
-
-
-
-
-
MULTIFUNCTION
-
-
-
-
-
FIRST LETTER SUCCEEDING LETTERS
INSTRUMENT IDENTIFICATION LETTERS
/
0000
0000
INSTRUMENTO MONTADO
EN TERRENO
INSTRUMENTO MONTADO
DELANTE DEL GABINETE
INSTRUMENTO MONTADO
DETRAS DEL GABINETE
SISTEMA DE CONTROL
VISOR/FUNCION
SISTEMA DE CONTROL
NO ACCESIBLE POR EL
OPERADOR
PLC ACCESIBLE POR
EL OPERADOR (NOTA 1)
SISTEMA COMPUTARIZADO
ENCLAVAMIENTO
PROGRAMATICO
(SOTFWARE) COMPLEJO
ENCLAVAMIENTO
COMPLEJO
ALAMBRADO
ENCLAVAMIENTO MODIFICADOR FUNCION
Y / O FUNCION LOGICA
I - ENCLAVAMIENTO LOGICO SIN DEFINIR
K - FUNCION DE TIEMPO
R - REAJUSTE
0000
ALARMA/LUZ ESTROBOSCOPICA
R - ROJO
G - VERDE
Y - AMARILLA
SUMNISTRO AIRE DE INSTRUMENTACION
SUMINISTRO AIRE DE PLANTA
SUMINISTRO ELECTRICO
SUMINISTRO ENERGIA DE EMERGENCIA
ANTENA
CONVERTIDOR (ENTRADA/SALIDA)
CODIGOS ENTRADA/SALIDA
I - CORRIENTE H - HIDRAULICO
E- VOLTAJE F - FRECUENCIA
P - NEUMATICO R - RESISTENCIA
D- DIGITAL A - ANALOGO
0000
AI
HH
H
L
LL
INDICACION DE NIVEL ALTO ALTO
INDICACION DE NIVEL ALTO
INDICACION DE NIVEL BAJO
INDICACION DE NIVEL BAJO BAJO
ALARMA VISULIZADA EN LA SALA DE CONTROL,
A SER UTILIZADO EN SISTEMA NO CRITICO,
SIN ENCLAVAMIENTO
NOTAS:
1. TODAS LAS OPCIONES "DESIGNACION DE PANEL" ESTAN
DISPONIBLES EN DCS.
2. ESTACIONES DE CONTROL DE TODOS LOS MOTORES ESTAN
IMPLICITAS Y POR ESO NO SON MOSTRADAS.
3. " V " INTRUMENTACION PARA EQUIPOS SUMINISTRADA EN EL
PAQUETE DEL VENDEDOR.
VALVULA SOLENOIDE
DE 3 VIAS
VALVULA SOLENOIDE
DE 4 VIAS
VALVULA SOLENOIDE
DE 4 VIAS DOBLE
PISTON
MOTOR
SOLENOIDE
VALVULA POST
INDICADORA
VOLANTE MANUAL
REGULADOR DE PRESION
INDEPENDIENTE
REGULADOR CONTRA
PRESION INDEPENDIENTE
DIAFRAGMA ELECTRO-HIDRAULICO
SIMBOLOS DE INTRUMENTACION
SIMBOLOS ACTUADORES DE VALVULAS
ABREVIACIONES SISTEMAS DE CONTROL
L
LL
L/R
L/O/R
LHS
MAN
NC
NO
OP
OP/CL
P1
P2
PERM
PLS
RV
RATIO
RDY
RHS
RM
RUN
RSP
RST
RTD
SEL
SL
SP
ST
STA
ST/SP
T/C
UP
UP/DN
V
A/M
ACK
AFD
ASD
BP/VS
CL
CWB
DCS
DIR
DN
EF
FC
FI
FL
FLT
FO
F/R
F/O/R
F/O/S
FS
FW
H
HH
H/O/A
H/O/R
H/LO
HS
HSS
I/D
J
JF/JS
JR/JF
LO
LC
- BAJO
- BAJO BAJO
- LOCAL/REMOTO
- LOCAL/DETENIDO/REMOTO
- LADO A MANO IZQUIERDA
- MANUAL
- NORMALMENTE CERRADA
- NORMALMENTE ABIERTA
- ABIERTO
- ABIERTO CERRADO
- PRIORIDAD 1
- PRIORIDAD 2
- AUTORIZACION
- CONTROLADOR
LOGICO PROGRAMABLE
- REVERSA
- CONTROL DE RAZON
- PREPARADO
- LADO A MANO DERECHA
- REMOTO
- OPERANDO
- PUNTO DE CONTRO REMOTO
- REAJUSTAR
- ELEMENTO DE TEMPERATURA RESISTIVO
- INTERRUPTOR DE SELECCION (INDEFINIDO)
- LENTO
- PARAR
- PARTIR
- CONDICION
- PARTIR/PARAR
- TERMOCUPLA
- ARRIBA (LEVANTAR)
- ARRIBA/ABAJO (SUBIR/BAJAR)
- SUMNISTRADO POR EL VENDEDOR (NOTA 3)
- AUTO/MANUAL
- TOMAR CONOCIMIENTO
- CONTROLADOR DE FRECUENCIA VARIABLE
- CONTROLADOR VELOCIDAD VARIABLE
- DERIVACIO/VELOCIDAD VARIABLE
- CERRADO
- RUEDA ECADENADA ANTIFRICCION
- SISTEMA CONTROL DISTRIBUIDO (SCD)
- DIRECCION
- ABAJO (INFERIOR)
- FALLA ELECTRICA
- CERRADO EN FALLA
- INDETERMINADO EN FALLA
- ULTIMA POSICION EN FALLA
- FALLA
- ABIERTO EN FALLA
- AVANZA/REVERSA
- AVANZA/DETENCION/REVERSA
- RAPIDO/DETENIDO/LENTO
- RAPIDO
- ADELANTE
- ALTO
- ALTO ALTO
- MANUAL/DETENIDO/AUTOMATICO
- MANUAL/DETENIDO/REMOTO
- ALTO/BAJO
- INTERRUPTOR MANUAL
O INTERRUPTOR DE SELECCION
- INTERRUPTOR MANUAL DE SEGURIDAD
/PARADA DE EMERGENCIA
- AUMENTA/DISMINUYE
- AVANCE
- AVANCE RAPIDO/AVANCE LENTO
- AVANCE ATRAS/AVANCE ADELANTE
- TRABAJO POSICION ABIERTA
- TRABAJO POSICION CERRADA
IDENTIFICACION NUMERO DEL INSTRUMENTO
0000
12345 A
FSL
0000 FSL 12345 A
SUFIJO DEL INSTRUMENTO
NUMERO DEL LAZO DEL INSTRUMENTO
ULTIMOS 3 DIGITOS DEL NUMERO DEL DIBUJO
VARIACION DEL INSTRUMENTO (VER TABLA ABAJO)
VARIABLE MEDIDA (VER TABLA ABAJO)
CODIGO DEL AREA (UNIDAD)
CADA INSTRUMENTO ESTA IDENTIFICADO POR UNA COMBINACION DE
LETRAS Y NUMEROS. LAS LETRAS SON SELECCIONADAS DESDE LA
TABLA PRESENTADA MAS ABAJO QUE CLASIFICA LA FUNCION DE LOS
INSTRUMENTOS. LAS LETRAS ESTAN SEGUIDAS POR UN NUMERO DE LAZO.
LOS NUMEROS DE LAZO SERAN COMUN PARA TODOS LOS INTRUMENTOS
PERTENECIENTES AL MISMO LAZO DE NUMERACION. UN MODIFCADOR
DE ESTE LAZO (LETRA) ES AGREGADO PARA DIFERENCIAR ENTRE
INSTRUMENTOS QUE SOPORTAN LA MISMA LETRA COMO PREFIJO
PARA CUALQUIER LAZO DADO.
VARIABLE MEDIDA O
VARIABLE INICIADORA
ANALISIS
QUEMADOR, COMBUSTION
CONDUCTIVIDAD
DENSIDAD
VOLTAJE
FLUJO (VOLUMETRICO)
ESCALA (DIMENSIONAL)
MANO
CORRIENTE (ELECTRICA)
ENERGIA
TIEMPO/PROGRAMA DE TIEMPO
NIVEL
HUMEDAD
DETECTOR DE METAL
TORQUE
PRESION O VACIO
CANTIDAD
RADIACION
VELOCIDAD O FRECUENCIA
TEMPERATURA
MULTIVARIABLE
VIBRACION
PESO, FUERZA
SIN CLASIFICAR
EVENTO, ESTADO O PRESENCIA
POSICION, DIMENSION
A
B
C
D
E
F
G
H
I
J
K
L
M
N
O
P
Q
R
S
T
U
V
W
X
Y
Z
VARIACION
-
-
-
DIFERENCIAL
-
RAZON
-
-
-
ANALISIS
TIEM. DE RAZON DE CAMBIO
-
MOMENTARIO
-
-
-
INTEGRADO O TOTALIZADOR
-
SEGURIDAD
-
-
-
-
-
-
-
LECTURA O
FUNCION PASIVA
ALARMA
-
-
-
SENSOR O ELEMENTO PRIMARIO
-
VIDRIO O ELEMENTO VISOR
-
INDICADOR
-
-
LUZ
-
-
ORIFICIO
PUNTO (PRUEBA DE CONEXION)
-
REGISTRO
-
-
MULTIFUNCION
-
POZO
-
-
-
FUNCION DE SALIDA
-
-
CONTROL
-
-
-
-
-
-
-
ESTACION DE CONTROL
-
-
-
-
-
-
-
INTERRUPTOR
TRANSMISOR
MULTIFUNCION
VALVULA,REGISTRO,PERSIA.
-
-
RELE,CALCULAR,CONVERTIR
CONDUCIR, ACTUAR, ELEM.
FINAL DE CONTROL
VARIACION
-
-
CERRADO
-
-
-
-
ALTO
-
-
-
BAJO
AL MEDIO,INTERMEDIARIO
-
ABIERTO
-
-
-
-
-
MULTIFUNCION
-
-
-
-
-
PRIMERA LETRA LETRAS SIGUIENTES
LETRAS DE IDENTIFICACION DE INSTRUMENTOS
S
E/H
M
S
S S
S
S
ALARM PRIORITY
P1 - HIGH, EQUIPMENT STOP
P2 - MEDIUM, REQUIRED ACTION BY OPERATOR
P3 - LOW, WARNING
PRIORIDAD DE LA ALARMA
P1 - ALTA, EQUIPO DETENIDO
P2 - MEDIA, ACCION REQUERIDA POR EL OPERADOR
P3 - BAJA, ADVERTENCIA
0000
0000
AG
KM
LT
ISSUED FOR CLIENT REVIEW
15-Dec-11
B
RP
ISSUED FOR COMBINED REVIEW
08-Jul-11
A
12/15/2011
K. MUNDY
A.J.GUNSON
T. OH
L. TAMELIN
12/15/2011
3:26:20
PM
WBS: 0000
B
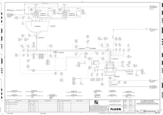
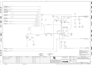
PIPING AND INSTRUMENTATION DIAGRAM
GENERAL
0000-25J-003
LEGEND AND SYMBOLS 3 OF 3
AI
ES
ES
AI
S
H
PISTON WITH
SPRING RETURN
HYDRAULIC
H
PISTON CON
RESORTE
DE RETORNO
HIDRAULICO
D
4
F
B
A
3
2
1 5 6 8
E
7
C
REV.
APPROVED
CHK.
DES.
REV. DATE REVISION DESCRIPTION
CLIENT
LEAD ENGINEER
SCALE DRAWING NUMBER
CHECK DESIGN CHECK DRAWING
DESIGNED BY DRAWN BY
APPROVAL DATE
APPROVAL DATE
APPROVED
CHK.
DES.
REV. DATE REVISION DESCRIPTION REFERENCE DRAWING No.
1:100
0
1:200
5m
10m
0
5m
10m
15m
20m
1:500
10m
0
20m
30m
40m
50m
1:1000
0
100m
50m
1:20
0
0.5m
1m
1.5m
2m
0
1:25
0.5m
1m
1.5m
1:33
1/3
2.5m
2m
0
1m
2m
3m
0
1:50
1m
2m
3m
4m
5m
CAD FILE NAME: P:0CAD000SPEM**
MODEL UPDATED:
DWG. FILE UPDATED:
MANUAL CHANGES MADE: YES NO YES NO YES NO
PROJECT MANAGER
ENGINEERING MANAGER
AREA PROJECT ENGINEER
REFERENCE DRAWINGS
SAFETY SHARE:
APPROVAL DATE
CONTRACT
NO.
SAFETY SHARE :
BA6CVA1.IGR
NOTICE: THIS DRAWING HAS NOT BEEN PUBLISHED AND IS THE SOLE
PROPERTY OF FLUOR AND IS LENT TO THE BORROWER FOR THEIR
CONFIDENTIAL USE ONLY, AND IN CONSIDERATION OF THE LOAN OF THIS
DRAWING, THE BORROWER PROMISES AND AGREES TO RETURN IT UPON
REQUEST AND AGREES THAT IT WILL NOT BE REPRODUCED, COPIED LENT
OR OTHERWISE DISPOSED OF DIRECTLY OR INDIRECTLY, NOR USED FOR
ANY OTHER PURPOSE OTHER THAN WHICH IT IS FURNISHED.
NONE
Apr 2011
240K-C2-
P&ID
ACTUAL
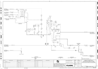
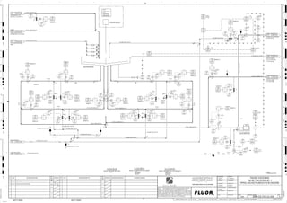
TYPICAL # 1 - STANDARD ELECTRIC MOTOR (FVNR) - T1
EQUIPMENT MOTOR LEGEND
0000
II
0000
XA
0000
XL
0000
XS
0000
HS
FAULT
RDY/RUN
SP
ST/SP
L/R
J/SP
0000
II
0000
XA
0000
HS
FAULT
J/SP
TYPICAL # 2 - REVERSING OR TWO SPEED DRIVE FVR (FV2S) - T2
P&ID
0000
II
0000
XA
0000
XL
0000
XS
0000
HS
FAULT
RDY/RUN
SP
FWD
REV
L/R
ST/SP
(J) JF/JR
SP
0000
II
0000
XA
0000
HS
FAULT
ACTUAL
(J) JF/JR
SP
NOTE:
1. BRACKETED DESCRIPTIONS ARE REPRESENTATIVE OF 2-SPEED FUNCTION AND REPLACE THE
DIRECTIONAL REPRESENTATION.
TYPICAL # 3 - ADJUSTABLE FREQUENCY DRIVE (AFD) - T3
ACTUAL P&ID
0000
II
0000
XA
0000
XL
0000
XS
0000
HS
FAULT
RDY/RUN
SP
ST/SP
L/R
J/SP
AFD
0000
II
0000
XA
0000
HS
FAULT
J/SP
AFD
TYPICAL # 4 - CONVEYOR STANDARD (FVNR CONV) - T4
0000
II
0000
HSA
0000
HSA
0000
HS
FAULT
RDY/RUN
SP
ST/SP
L/R
J/SP
0000
XA
0000
XL
0000
XS
A TO N
A TO N
0000
XA
+
A TO N
0000
II
0000
HS
J/SP
0000
XA
0000
XA
+
A TO N
SAFETY
INTERLOCKS
NOTE 2
FVNR CONV
SAFETY
INTERLOCKS
FAULT
NOTES:
1. MISALIGNMENT SWITCHES, BELT RIP SWITCHES, PLUGGED CHUTE SWITCHES WILL BE WIRED INTO
THE DCS AND WILL TRIP THE CONVEYOR VIA THE DCS OUTPUT STOP.
2. PULL CORDS ON THE OPPOSITE SIDES OF THE CONVEYOR WILL HAVE SEPARATE TAG NUMBER
MULTIPLE SWITCHES ON SAME SIDE OF THE CONVEYOR WILL BE IDENTIFIED BY A, B, C, ETC.
3.MULTIPLE START-UP WARNING HORNS WILL BE IDENTIFIED AS REQUIRED A,B,C,ETC.
TYPICAL # 6 - VARIABLE SPEED HYDRAULIC DRIVE - T6
ACTUAL P&ID
P&ID
ACTUAL
0000
PDAH
0000
TI
0000
TAHH
0000
TAH
0000
LI
0000
XA
+
0000
XL
0000
HS
0000
XA
0000
HS
J/SP
RDY/RUN
SP
ST/SP
L/R
DIR
HYDRAULIC
DRIVE
SEE VENDOR
DRAWING
XXXXXXXXXX
SAFETY
INTERLOCKS
0000
PDI
0000
TI
0000
LI
0000
XA
0000
HS
FAULT
HYDRAULIC
DRIVE
SEE VENDOR
DRAWING
XXXXXXXXXX
J/SP
HH
H
L, P2
TYPICAL # 5 - ADJUSTABLE FREQUENCY DRIVE-CONVEYOR (AFD CONV) - T5
P&ID
ACTUAL
0000
II
0000
HSA
0000
HSA
0000
HS
FAULT
J/SP
0000
XA
0000
XL
0000
HS
A TO N
0000
XA
+
A TO ?
SAFETY
INTERLOCKS A TO N
RDY/RUN
SP
ST/SP
L/R
0000
TI
C
WDG
0000
TI
0000
TI
B
A
WDG
WDG
0000
G
TE
0000
H
TE
0000
G
TI
0000
H
TI
AFD
BRG
REAR
0000
II
0000
XA
0000
XA
+
A TO ?
SAFETY
INTERLOCKS
FAULT
0000
G
TE
0000
H
TE
0000
G
TI
0000
H
TI
AFD
BRG
FRONT
H, P2
HH, P1
BRG
REAR
H, P2
HH, P1
MISCELLANEOUS LEGEND
TYPICAL # 8 - SUMP PUMP CONTROL - T8
P&ID
ACTUAL
0000
LE
0000
LIT
0000
LI
0000
HS
0000
II
0000
XA
J/SP
H, P2
HH, P1
L,P2
FAULT
0000
LE
0000
LIT
0000
HS
0000
II
0000
XS
0000
XL
0000
XA
J/SP
H/A
L/R
ST/SP
RDY/RUN
SP
0000
LI
TYPICAL # 9 - GLAND SEAL WATER PUMP CONTROL - T9
T9
2"x1-1/4"
0000
PI
0000
FI
0000
PIT
0000
FIT
M
L, P2
LL, P1
L, P2
0000
FE
+
3"x2" 3"x2"
MODIFIERS
UNIVERSAL MOTOR MODIFIER # 1 - TYPICAL MULTILIN MOTOR PROTECTION - U1
ACTUAL
0000
II
0000
UA
0000
JI
0000
HS
TRIP TYPE
J/SP
0000
XA
0000
XL
0000
HSLA
RDY/RUN
SP
ST/SP
L/R
0000
TI
WDG
0000
TI
0000
TI
A
WDG
WDG
0000
G
TE
0000
H
TE
0000
G
TI
0000
H
TI
0000
US
0000
XA
MPR
TRIP
TYPE
P&ID
0000
JI
0000
HS
J/SP
0000
II
0000
XA FAULT
0000
G
TE
0000
H
TE
0000
G
TI
0000
H
TI
BRG
FRONT
H, P2
HH, P1
BRG
REAR
H, P2
HH, P1
UNIVERSAL MOTOR MODIFIER # 2 - U2
0000
TI
0000
TI
0000
TI
0000
TAH
0000
XA TRIP
TYPE
0000
TI
0000
XA
HH, P1
H, P2
WDG
A TO C
ACTUAL P&ID
0000
TAHH
WDG
WDG
WDG
A
B
C
TRIP
TYPE
UNIVERSAL MOTOR MODIFIER # 3 - U3
ACTUAL P&ID
0000
G
TI
0000
H
TI
0000
G
TE
0000
H
TE
0000
G
TI
0000
H
TI
0000
G
TE
0000
H
TE
BRG
REAR
H, P2
HH, P1
BRG
FRONT
H, P2
HH, P1
T1
T1
U3
U3
U1
T2 T2
T3 T3
T4 T4
T5 T5
T8
T8
U1
U2 U2
AG
KM
LT
ISSUED FOR CLIENT REVIEW
15-Dec-11
B
RP
ISSUED FOR COMBINED REVIEW
08-Jul-11
A
12/15/2011
K. MUNDY
A.J. GUNSON
T. OH
L. TAMELIN
12/15/2011
2:36:49
PM
WBS: 0000
B
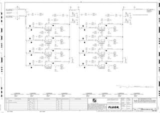
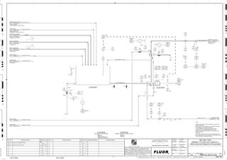
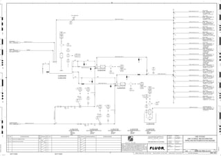
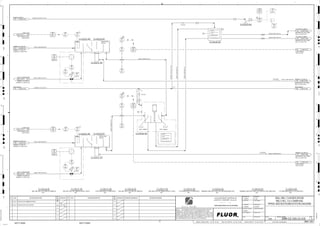
PIPING AND INSTRUMENTATION DIAGRAM
GENERAL
0000-25J-004
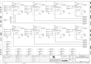
MOTOR AND VALVE CONTROL SCHEME 1 OF 2
ES
FAULT
0000
HS
J/SP
BRG
REAR
BRG
FRONT BRG
FRONT
BRG
FRONT
BRG
REAR
B
C
BRG
REAR
BRG
FRONT
NOTES:
1. P1 CAUSES A TRIP CONDITION.
2. P2 REQUIRES OPERATOR ACTION.
3. P1, P2 CONDITIONS IN GENERAL MOTOR SCHEMES ARE FOR REFERENCE. PROCESS DISCIPLINE TO UPDATE ACCORDINGLY.
BRG
REAR
BRG
FRONT
A TO N
H, P2
HH, P1
L,P2
H, P2
HH, P1
H, P2
HH, P1
BRG
FRONT
H, P2
HH, P1
BRG
REAR
H, P2
HH, P1
BRG
FRONT
H, P2
HH, P1
BRG
REAR
H, P2
HH, P1
D
4
F
B
A
3
2
1 5 6 8
E
7
C
REV.
APPROVED
CHK.
DES.
REV. DATE REVISION DESCRIPTION
CLIENT
LEAD ENGINEER
SCALE DRAWING NUMBER
CHECK DESIGN CHECK DRAWING
DESIGNED BY DRAWN BY
APPROVAL DATE
APPROVAL DATE
APPROVED
CHK.
DES.
REV. DATE REVISION DESCRIPTION REFERENCE DRAWING No.
1:100
0
1:200
5m
10m
0
5m
10m
15m
20m
1:500
10m
0
20m
30m
40m
50m
1:1000
0
100m
50m
1:20
0
0.5m
1m
1.5m
2m
0
1:25
0.5m
1m
1.5m
1:33
1/3
2.5m
2m
0
1m
2m
3m
0
1:50
1m
2m
3m
4m
5m
CAD FILE NAME: P:0CAD000SPEM**
MODEL UPDATED:
DWG. FILE UPDATED:
MANUAL CHANGES MADE: YES NO YES NO YES NO
PROJECT MANAGER
ENGINEERING MANAGER
AREA PROJECT ENGINEER
REFERENCE DRAWINGS
SAFETY SHARE:
APPROVAL DATE
CONTRACT
NO.
SAFETY SHARE :
BA6CVA1.IGR
NOTICE: THIS DRAWING HAS NOT BEEN PUBLISHED AND IS THE SOLE
PROPERTY OF FLUOR AND IS LENT TO THE BORROWER FOR THEIR
CONFIDENTIAL USE ONLY, AND IN CONSIDERATION OF THE LOAN OF THIS
DRAWING, THE BORROWER PROMISES AND AGREES TO RETURN IT UPON
REQUEST AND AGREES THAT IT WILL NOT BE REPRODUCED, COPIED LENT
OR OTHERWISE DISPOSED OF DIRECTLY OR INDIRECTLY, NOR USED FOR
ANY OTHER PURPOSE OTHER THAN WHICH IT IS FURNISHED.
NONE
Apr 2011
240K-C2-
ACTUAL P&ID
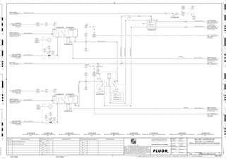
TYPICAL # 7 - ON/OFF VALVE DOUBLE ACTING (DUAL CONTROL) - V1
AUTOMATED VALVE LEGEND
0000
XV
+
VENT
S
S
0000
ZSO
0000
ZSC
0000
XS
0000
XA
0000
ZIC
0000
ZIO
V1
TYPICAL # 10 - ON/OFF MOTORIZED VALVE - V3
M
M
0000
XV
+
0000
XV
+
0000
HY
0000
B
HS
0000
ZS
0000
ZSC
0000
ZSO
OP/CL
MISMATCH
VALVE CLOSED
VALVE OPEN
0000
HS
0000
XA
0000
ZI
0000
XI
OP/CL
MISMATCH
OP/CL
L/R
OP/CL
OP/CL
L/R
0000
XA MISMATCH
OP/CL
P&ID
ACTUAL
TYPICAL # 11 - FLOW CONTROL WITH MAGNETIC FLOW METER AND VALVE - T11
M M
0000
FE
+
0000
FV
+
0000
FE
+
0000
FV
+
0000
FIT
0000
FIT
0000
FIC
0000
FIC
0000
FQI
P&ID
ACTUAL
HH, P1
H, P2
L, P2
LL, P1
D
P
TYPICAL # 12 - FLOW CONTROL WITH REAGENT EJECTOR - T12
0000
FE
+
0000
FE
+
0000
FIC
0000
FIC
0000
FI
0000
FQI
0000
FQI
H, P2
L, P2
P&ID
ACTUAL
0000
XV
+
AG
KM
LT
ISSUED FOR CLIENT REVIEW
15-Dec-11
B
RP
ISSUED FOR COMBINED REVIEW
08-Jul-11
A
12/15/2011
K. MUNDY
A.J. GUNSON
T. OH
L. TAMELIN
12/15/2011
3:33:44
PM
WBS: 0000
B
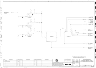
PIPING AND INSTRUMENTATION DIAGRAM
GENERAL
0000-25J-005
MOTOR AND VALVE CONTROL SCHEME 2 OF 2
ES
ES
ES
AI
ES
ES
ES
0000
XA MISMATCH
0000
ZS
OP/CL
0000
FY
S
0000
XYO
+
0000
XYC
+
KNIFE GATE VALVE SHOWN
KNIFE GATE VALVE SHOWN
0000
A
HS
0000
B
HS
0000
ZL
OP/CL L/R
OP/CL/FAULT
KNIFE GATE VALVE SHOWN
V3
KNIFE GATE VALVE SHOWN
HH, P1
H, P2
L, P2
LL, P1
H, P2
L, P2
V
V
S
V
V
V
V
AUTOMATED VALVE LEGEND
E/H
0000
XV
+
0000
HY
0000
ZSC
0000
ZSO
0000
HS
0000
XA
0000
ZI
0000
XI
OP/CL
MISMATCH
OP/CL
L/R
OP/CL
ACTUAL
ES 0000
A
HS
0000
B
HS
0000
ZL
OP/CL L/R
OP/CL/FAULT
KNIFE GATE VALVE SHOWN
E/H
0000
XV
+
0000
B
HS
0000
ZS
OP/CL
L/R
0000
XA MISMATCH
OP/CL
P&ID
ES
V5
KNIFE GATE VALVE SHOWN
TYPICAL # 15 - ON/OFF VALVE ELECTRO-HYDRAULIC CONTROL - V5
VENT
0000
ZSO
0000
ZSC
0000
XS
0000
XA
0000
ZIC
0000
ZIO
OP/CL
MISMATCH
VALVE CLOSED
VALVE OPEN
0000
XV
+
AI
KNIFE GATE VALVE SHOWN
0000
XV
+
V2
0000
XA MISMATCH
0000
ZS
KNIFE GATE VALVE SHOWN
ACTUAL P&ID
S
0000
XY
+
0000
XV
+
V4
0000
XA MISMATCH
0000
ZS
KNIFE GATE VALVE SHOWN
P&ID
S
0000
ZSO
0000
ZSC
0000
XS
0000
XA
0000
ZIC
0000
ZIO
OP/CL
MISMATCH
VALVE CLOSED
VALVE OPEN
0000
XV
+
KNIFE GATE VALVE SHOWN
HYDRAULIC
RETURN
TYPICAL # 14 - ON/OFF VALVE HYDRAULIC CONTROL - V4
TYPICAL # 13 - ON/OFF VALVE SPRING RETURN SINGLE ACTING(SINGLE CONTROL) - V2
ACTUAL
H
H, P2
L, P2
HS
AI
ROCK BREAKER
HYDRAULIC SYSTEM
43 KW
P.O NO.:
VENDOR DWG NO.:
VENDOR:
P.O NO.:
VENDOR DWG NO.:
VENDOR:
P.O NO.:
VENDOR DWG NO.:
VENDOR:
3110
30384
II
3110
30282
HS
J/SP
3110
00104 C
HS
3110
00101
LI
3110
30404 C
FAL
P1
3110
30301
PDI
3110
30401
XA
3110
30581
XA
3110
30385
XA
3110
30281
II
3110
00104 D
HS
3110
00181
HS
J/SP
3110
00182
II
3110
30404 A
FISL
3110
00104 B
XL
NO DUMP
3110
00101
LIT
3110
30301
LI
H, P2
3110
30102
ZE
3110
30404 B
FAL
3110
30382
II
3110
30401
ZS
3110
30402
TI
3110
00131 B
AT
3110
00131 A
LIT
3110
00104 A
HS
3110
00102
LI
3110
30403
TI
3110
30102
ZIT
M
3110
30401
PI
3110
30404 C
FISL
3110
30581
HS
J/SP
3110
30381
II
3110
30201
XA
FAULT
3110
30382
XA
3110
00103
LAL
3110
30401
TI
3110
30201
PDI
3110
30301
ZI
3110
00102
LT
3110
00131 B
LIT
3110
30381
XA
3110
30382
HS
J/SP
3110
00182
HS
J/SP
3110
00101
LE
3110
30101 A
TI
3110
30402
PI
3110
30381
HS
J/SP
3110
30101 B
TI HH, P1
H, P2
3110
30201
LI
3110
30101 A
TE
3110
00102 A
LI
3110
00131 B
AI
3110
00181 H
TE
3110
00181
II
3110
30102
ZI
3110
30383
XA
3110
30301 A
TI
3110
30385
II
3110
30383
HS
J/SP
3110
00131 A
LE
3110
00104 A
XL
3110
30383
II
3110
00104 D
XL
NO DUMP
3110
00101
LX
3110
00104 B
HS
3110
30282
II
3110
00104 C
XL
3110
00102
LE
3110
30102
ZY
3110
30385
HS
J/SP
3110
30501
XA
3110
30384
XA
3110
30501
YS
3110
30502
PI
3110
30301
XA
3110
00103
LSL
3110
30282
XA
3110
30101 B
TE
3110
30281
XA
3110
00181 G
TE
3110
00131 B
LE
3110
30404 B
FISL
3110
30384
HS
J/SP
3110
30404 A
FAL
3110
00181 G
TI
REAR
H, P2
HH, P1
3110
30281
HS
J/SP
3110
00182
XA
3110
30301 B
TI HH, P1
H, P2
3110
00181 H
TI
3110
30403
TE
3110
00104
HS
HORN
3110
30581
II
WASTE OIL
OIL CONTAINMENT TANK,
C2-3110-TK-010
1769 3100-25J-004
FRESH WATER
DISTRIBUTION
1767 5100-25J-014
PRIMARY CRUSHED ORE
APRON FEEDER,
C2-3110-FE-011
1768
3100-25J-004
ACCUMULATOR
MISMATCH
HH, P1
H, P2
P1
DUMP POCKET
500 T
LIVE CAPACITY
FRONT
H, P2
HH, P1
FAULT
HAUL TRUCK 24 0 TON
NO DUMP
SOUTH
HAUL TRUCK 24 0 TON
FAULT
OP/CL
FAULT
FAULT
TRAFFIC CONTROL (N)
INBOARD
BRG
L, P2
LL, P1
NO DUMP
NORTH
DUMP
SOUTH
H, P2
OUTBOARD
BRG
L, P1
LL, P2
VENDOR
P2
HH, P1
H, P2
TRAFFIC CONTROL (S)
PARTICLE
SIZE
LUBE
OIL
COOLER A
P1
DUMP
NORTH
V
FAULT
LUBE
OIL
COOLER B
DUMP
DUMP
NUCLEAR
ROCK BREAKER
REMOTE CONTROL
FAULT
FAULT
H, P2
L, P2
ROCK BREAKER
CONTROL PANEL
(CONTROL RM)
V
3" 3"
4"x3"
V
V
V
1-1/2"x1-1/4"
C2-3110-LU-001
C2-3110-ST-001
V
C2-3110-HY-001
V
4"x3"
V
C2-3110-CR-001
C2-3110-BL-001
3110
30401
XV
+
V
3"
3110
00104
XA
+
C2-3110-ZM-011
C2-3110-RB-001
1-1/2"x3/4"
3110
30402
PSV
+
3"x2"
V
C2-3110-CK-001
3"
C2-3110-LU-002
V
V
V
3110-OLL-1010-S1A-6"-H
V
3110-WF-1085-C1A-8"-N
V
3110-OLH-1002-S4A-3/4"-H
3110-OLL-1004-S1A-3"-H
V
3110-OLL-1007-S1A-3"-H
V
V
ES
3110-WF-1210-C1A-4"-N
V
3110-OLL-1009-S1A-3/4"-H
3110-DR-1001-C1B-4"-N
V
ES
3110-WF-1212-C1A-4"-N
ES
V
V
V
3110-OLL-1005-S1A-3"-H
V
V
3110-OLH-1001-S7A-1/2"-H
ES
V
3110-OLL-1011-S1A-3"-H
3110-OLL-1003-S1A-3"-H
3110-ALP-1001-C1A-1-1/2"-N
3110-OLH-1003-S4A-3"-H
V
V
V
3110-OLL-1008-S1A-2"-H
SIZE:
C2-3110-ST-001
PRIMARY CRUSHER DISCHARGE CHUTE
3110-OLL-1001-S1A-3"-H
D
4
F
B
A
3
2
1 5 6 8
E
7
C
REV.
APPROVED
CHK.
DES.
REV. DATE REVISION DESCRIPTION
CLIENT
LEAD ENGINEER
SCALE DRAWING NUMBER
CHECK DESIGN CHECK DRAWING
DESIGNED BY DRAWN BY
APPROVAL DATE
APPROVAL DATE
APPROVED
CHK.
DES.
REV. DATE REVISION DESCRIPTION REFERENCE DRAWING No.
1:100
0
1:200
5m
10m
0
5m
10m
15m
20m
1:500
10m
0
20m
30m
40m
50m
1:1000
0
100m
50m
1:20
0
0.5m
1m
1.5m
2m
0
1:25
0.5m
1m
1.5m
1:33
1/3
2.5m
2m
0
1m
2m
3m
0
1:50
1m
2m
3m
4m
5m
CAD FILE NAME: P:0CAD000SPEM**
MODEL UPDATED:
DWG. FILE UPDATED:
MANUAL CHANGES MADE: YES NO YES NO YES NO
PROJECT MANAGER
ENGINEERING MANAGER
AREA PROJECT ENGINEER
REFERENCE DRAWINGS
SAFETY SHARE:
APPROVAL DATE
CONTRACT
NO.
SAFETY SHARE :
BA6CVA1.IGR
NOTICE: THIS DRAWING HAS NOT BEEN PUBLISHED AND IS THE SOLE
PROPERTY OF FLUOR AND IS LENT TO THE BORROWER FOR THEIR
CONFIDENTIAL USE ONLY, AND IN CONSIDERATION OF THE LOAN OF THIS
DRAWING, THE BORROWER PROMISES AND AGREES TO RETURN IT UPON
REQUEST AND AGREES THAT IT WILL NOT BE REPRODUCED, COPIED LENT
OR OTHERWISE DISPOSED OF DIRECTLY OR INDIRECTLY, NOR USED FOR
ANY OTHER PURPOSE OTHER THAN WHICH IT IS FURNISHED.
NONE
Apr 2011
240K-C2-
AG
GV
LT
ISSUED FOR CLIENT REVIEW
19-Dec-11
B
RP
ISSUED FOR COMBINED REVIEW
23-Jun-11
A
12/19/2011
G. VICENTIJEVIC
A. GUNSON
T. OH
L. TAMELIN
12/19/2011
10:52:43
AM
WBS: 3110
B
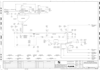
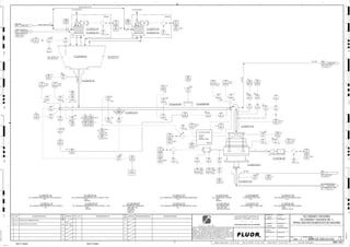
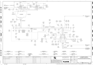
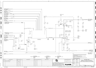
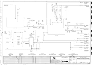
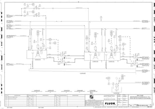
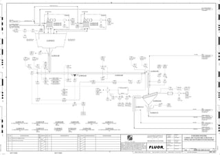
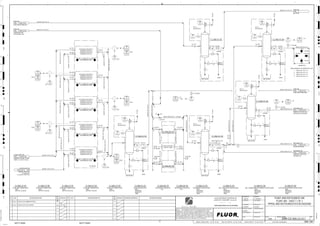
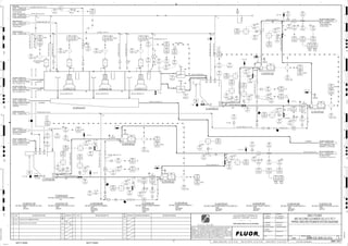
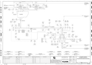
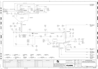
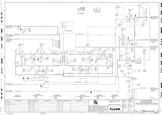
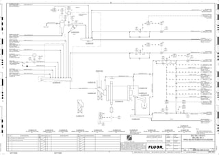
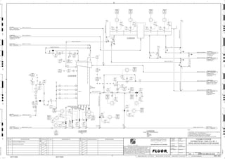
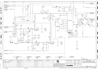
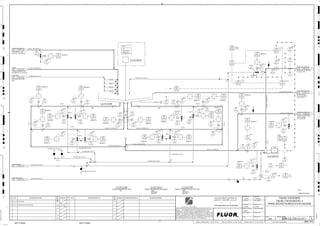
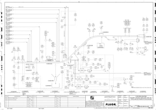
PIPING AND INSTRUMENTATION DIAGRAM
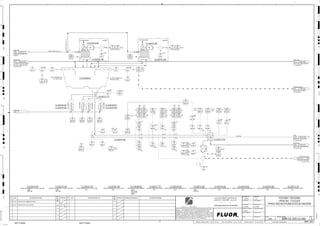
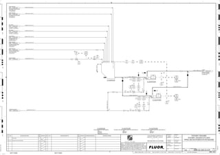
PRIMARY CRUSHING
3100-25J-001
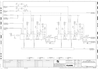
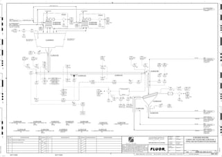
PRIMARY CRUSHER NO. 1
T1
3110
00181
XA FAULT
FAULT
FAULT
C2-3100-25J-302 C2-3100-25J-303
3100-25J-305
V
C2-3110-CK-002
SIZE:
MOTOR:
C2-3110-CK-002
PRIMARY CRUSHER LUBE OIL COOLER SYSTEM
SIZE:
MOTOR:
C2-3110-CK-001
PRIMARY CRUSHER LUBE OIL COOLER SYSTEM
SIZE:
MOTOR:
C2-3110-LU-001
PRIMARY CRUSHER LUBE OIL SYSTEM
SIZE:
MOTOR:
C2-3110-HY-001
PRIMARY CRUSHER HYDRAULIC SETTING SYSTEM
7.5 KW
22 KW 7.5 KW
2 X 5.6 KW
SIZE:
MOTOR:
C2-3110-ZM-011
PRIMARY CRUSHER ECCENTRIC CART
37 KW
SIZE: 60" x 113"
MOTOR: 750.00 kW
C2-3110-CR-001
PRIMARY CRUSHER GYRATORY
SIZE: 74 cfm
MATERIAL:
MOTOR: 0.45 kW
C2-3110-BL-001
CRUSHER DUST SEAL BLOWER
SIZE:
MOTOR:
C2-3110-LU-002
PRIMARY CRUSHER SPIDER LUBE SYSTEM
0.37 KW
C2-3110-BN-003
SIZE:500 t LIVE
C2-3110-BN-003
SURGE POCKET
C2-3110-PW-025
RAW SEWAGE
SEPTIC TANK
3225
SIZE:
MATERIAL:
MOTOR: 3.70 kW
C2-3110-PW-025
SUBMERSIBLE SEWAGE PUMP PRIMARY CRUSHER NO. 1
SIZE:
MOTOR:
C2-3110-RB-001
HYDRAULIC ROCK BREAKER
C2-3110-HY-002
SIZE:
MOTOR:
C2-3110-HY-002
ROCK BREAKER HYDRAULIC UNIT
150 KW
BRG BRG
IMAGE
3110
00131 A
AT
3110
00131 A
AI
IMAGE
V V
3110-OLL-1006-S1A-3"-H
3110-OLL-1002-S1A-3"-H
C2-3110-CN-001
SIZE:
C2-3110-CN-001
JIB CRANE
ES
M
M
3110
00132 A
FIT
3110
00132 B
FIT
3110
00132 A
FE
+
3110
00132 B
FE
+
3110
00132 A
FIC
3110
00132 B
FIC
3110
00132 A
FV
+
3110
00132 B
FV
+
1"
1/2" /9.8 GPM (TYP ALL)
/54 GPM (TYP ALL)
D
4
F
B
A
3
2
1 5 6 8
E
7
C
REV.
APPROVED
CHK.
DES.
REV. DATE REVISION DESCRIPTION
CLIENT
LEAD ENGINEER
SCALE DRAWING NUMBER
CHECK DESIGN CHECK DRAWING
DESIGNED BY DRAWN BY
APPROVAL DATE
APPROVAL DATE
APPROVED
CHK.
DES.
REV. DATE REVISION DESCRIPTION REFERENCE DRAWING No.
1:100
0
1:200
5m
10m
0
5m
10m
15m
20m
1:500
10m
0
20m
30m
40m
50m
1:1000
0
100m
50m
1:20
0
0.5m
1m
1.5m
2m
0
1:25
0.5m
1m
1.5m
1:33
1/3
2.5m
2m
0
1m
2m
3m
0
1:50
1m
2m
3m
4m
5m
CAD FILE NAME: P:0CAD000SPEM**
MODEL UPDATED:
DWG. FILE UPDATED:
MANUAL CHANGES MADE: YES NO YES NO YES NO
PROJECT MANAGER
ENGINEERING MANAGER
AREA PROJECT ENGINEER
REFERENCE DRAWINGS
SAFETY SHARE:
APPROVAL DATE
CONTRACT
NO.
SAFETY SHARE :
BA6CVA1.IGR
NOTICE: THIS DRAWING HAS NOT BEEN PUBLISHED AND IS THE SOLE
PROPERTY OF FLUOR AND IS LENT TO THE BORROWER FOR THEIR
CONFIDENTIAL USE ONLY, AND IN CONSIDERATION OF THE LOAN OF THIS
DRAWING, THE BORROWER PROMISES AND AGREES TO RETURN IT UPON
REQUEST AND AGREES THAT IT WILL NOT BE REPRODUCED, COPIED LENT
OR OTHERWISE DISPOSED OF DIRECTLY OR INDIRECTLY, NOR USED FOR
ANY OTHER PURPOSE OTHER THAN WHICH IT IS FURNISHED.
NONE
Apr 2011
240K-C2-
ROCK BREAKER
HYDRAULIC SYSTEM
43 KW
P.O NO.:
VENDOR DWG NO.:
VENDOR:
P.O NO.:
VENDOR DWG NO.:
VENDOR:
P.O NO.:
VENDOR DWG NO.:
VENDOR:
3110
00231 B
LIT
3110
00204 D
XL
NO DUMP
3110
31281
XA
3110
00281 H
TI
3110
31581
II
3110
00281 G
TI
BRG
REAR
H, P2
HH, P1
3110
00204 C
HS
3110
31381
II
3110
31384
II
3110
00231 B
LE
3110
00201
LIT
3110
31402
PI
3110
00202
LT
3110
31383
II
3110
31282
XA
3110
31404 A
FISL
3110
00204 C
XL
3110
31281
II
3110
31502
PI
3110
31102
ZIT
3110
31384
XA
3110
00202 A
LI
3110
00282
II
3110
31101 A
TI
3110
00204
HS
HORN
3110
31403
TI
3110
00282
XA
3110
00203
LAL
3110
31382
XA
3110
31301
XA
3110
31282
HS
J/SP
3110
00201
LI
3110
31501
YS
3110
31401
XA
3110
31403
TE
3110
31102
ZI
3110
31383
XA
3110
31382
II
3110
31404 B
FAL
3110
00203
LSL
3110
00202
LI
3110
31385
HS
J/SP
3110
31381
HS
J/SP
3110
31201
PDI
3110
31383
HS
J/SP
3110
00204 A
HS
3110
31401
TI
3110
31404 C
FAL
P1
3110
00231 A
LIT
3110
31501
XA
3110
31281
HS
J/SP
3110
00231 B
AI
3110
31201
XA
FAULT
M
3110
31404 B
FISL
3110
31385
XA
3110
31581
HS
J/SP
3110
31301
ZI
3110
31301 B
TI HH, P1
H, P2
3110
31401
PI
3110
00204 B
HS
3110
00231 B
AT
3110
00201
LX
3110
00281 H
TE
3110
00231 A
LE
3110
00282
HS
J/SP
3110
00281
II
3110
31382
HS
J/SP
3110
31404 C
FISL
3110
31301
PDI
3110
31385
II
3110
31402
TI
3110
00204 D
HS
3110
31301
LI
H, P2
3110
31101 B
TE
3110
31381
XA
3110
31101 A
TE
3110
31401
ZS
3110
31301 A
TI
3110
00202
LE
3110
31101 B
TI HH, P1
H, P2
3110
00204 A
XL
3110
31404 A
FAL
3110
00281 G
TE
3110
00201
LE
3110
00281
HS
J/SP
3110
31282
II
3110
00204 B
XL
NO DUMP
3110
00281
XA
3110
31102
ZE
3110
31384
HS
J/SP
3110
31201
LI
3110
31102
ZY
3110
31581
XA
PRIMARY CRUSHED ORE
APRON FEEDER,
C2-3110-FE-021
1833
3100-25J-005
WASTE OIL
OIL CONTAINMENT TANK,
C2-3110-TK-007
1834 3100-25J-005
FRESH WATER
DISTRIBUTION
1832 5100-25J-014
P1
NUCLEAR V
LUBE
OIL
COOLER B
HH, P1
H, P2
H, P2
L, P2
ACCUMULATOR
NO DUMP
NORTH
DUMP
SOUTH
FAULT
FAULT
DUMP
L, P1
LL, P2
FAULT
OUTBOARD
BRG
P1
DUMP
NORTH
FAULT
P2
OP/CL
NO DUMP
SOUTH
DUMP POCKET
500 T
LIVE CAPACITY
PARTICLE
SIZE
HAUL TRUCK 24 0 TON
MISMATCH
DUMP
ROCK BREAKER
REMOTE CONTROL
HH, P1
H, P2
TRAFFIC CONTROL (N)
INBOARD
BRG
FAULT
HAUL TRUCK 24 0 TON
BRG
FRONT
H, P2
HH, P1
H, P2
FAULT
LUBE
OIL
COOLER A
VENDOR
TRAFFIC CONTROL (S)
L, P2
LL, P1
ROCK BREAKER
CONTROL PANEL
(CONTROL RM)
FAULT
ES
V
V
V
V
V
ES
ES
V
V
V
V
V
V
ES
V
V
V
V
V
V
3"
V
SIZE:
C2-3110-ST-004
PRIMARY CRUSHER DISCHARGE CHUTE
3"
V
3110-OLH-1004-S7A-1/2"-H
3"x2"
1-1/2"x3/4"
V
3110-OLL-1018-S1A-3"-H
V
C2-3110-LU-004
3110-OLH-1006-S4A-3"-H
4"x3"
3110-OLL-1012-S1A-3"-H
V
3"
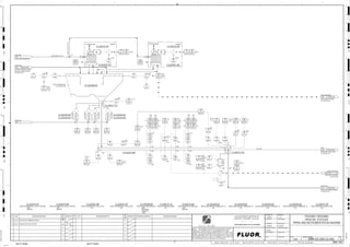
C2-3110-RB-002
4"x3"
3110-OLH-1005-S4A-3/4"-H
3110-OLL-1021-S1A-6"-H
V
1-1/2"x1-1/4" V
3110-OLL-1016-S1A-3"-H
3110
31401
XV
+
3110-DR-1003-C1B-4"-N
C2-3110-LU-003
V
C2-3110-ZM-012
3110-WF-1096-C1A-8"-N
C2-3110-CR-002
C2-3110-BL-002
V
C2-3110-HY-004
3110-ALP-1002-C1A-1-1/2"-N
3110
31402
PSV
+
C2-3110-ST-004
V
3110-OLL-1014-S1A-3"-H
3110-OLL-1022-S1A-3"-H
C2-3110-CK-004
3110-OLL-1015-S1A-3"-H
3110
00204
XA
+
3110-OLL-1019-S1A-2"-H
3110-OLL-1020-S1A-3/4"-H
3"
V
AG
GV
LT
ISSUED FOR CLIENT REVIEW
19-Dec-11
B
RP
ISSUED FOR COMBINED REVIEW
23-Jun-11
A
12/19/2011
G. VICENTIJEVIC
A. GUNSON
T. OH
L. TAMELIN
12/19/2011
9:48:07
AM
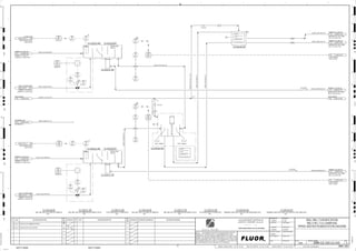
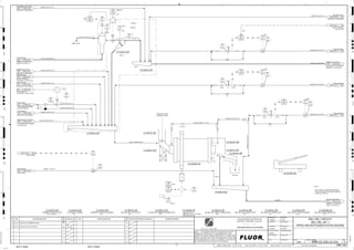
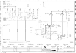
WBS: 3110
B
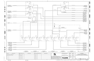
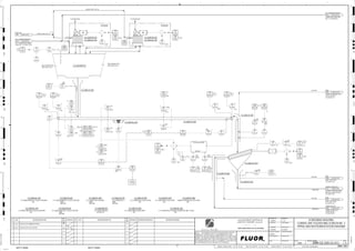
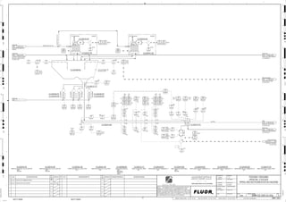
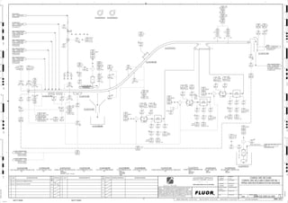
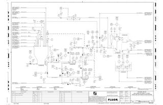
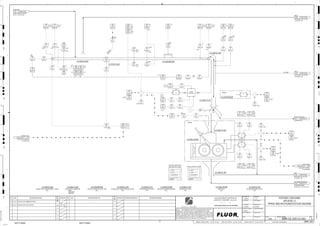
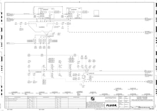
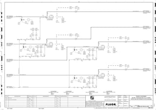
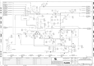
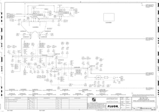
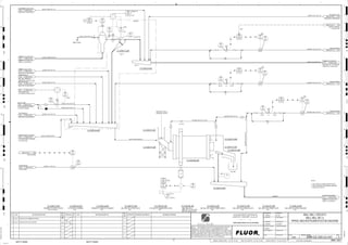
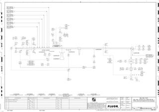
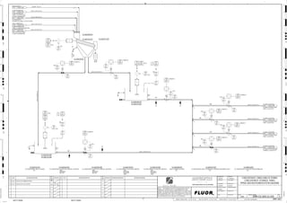
PIPING AND INSTRUMENTATION DIAGRAM
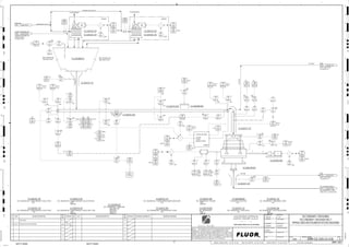
PRIMARY CRUSHING
3100-25J-002
PRIMARY CRUSHER NO. 2
T1
FAULT
FAULT
FAULT
C2-3100-25J-312 C2-3100-25J-313
C2-3100-25J-315
C2-3110-CK-003
SIZE:
MOTOR:
C2-3110-CK-003
PRIMARY CRUSHER LUBE OIL COOLER SYSTEM
SIZE:
MOTOR:
C2-3110-CK-004
PRIMARY CRUSHER LUBE OIL COOLER SYSTEM
7.5 KW
7.5 KW
SIZE:
MOTOR:
C2-3110-LU-003
PRIMARY CRUSHER LUBE OIL SYSTEM
SIZE:
MOTOR:
C2-3110-HY-004
PRIMARY CRUSHER HYDRAULIC SETTING SYSTEM
22 KW
2 X 5.60 KW
SIZE:
MOTOR:
C2-3110-LU-004
PRIMARY CRUSHER SPIDER LUBE SYSTEM
0.37 KW
SIZE:
MOTOR: 37.00 kW
C2-3110-ZM-012
PRIMARY CRUSHER ECCENTRIC CART
SIZE: 74 cfm
MATERIAL:
MOTOR: 0.45 kW
C2-3110-BL-002
CRUSHER DUST SEAL BLOWER
SIZE: 60" x 113"
MOTOR: 750.00 kW
C2-3110-CR-002
PRIMARY CRUSHER GYRATORY
C2-3110-BN-010
SIZE:500 t LIVE
C2-3110-BN-010
SURGE POCKET
SIZE:
C2-3110-RB-002
HYDRAULIC ROCK BREAKER
SIZE:
MOTOR:
C2-3110-HY-005
ROCK BREAKER HYDRAULIC UNIT
150 KW
RAW SEWAGE
TO SEPTIC TANK
3226
C2-3110-PW-026
SIZE:
MATERIAL:
MOTOR: 3.70 kW
C2-3110-PW-026
SUBMERSIBLE SEWAGE PUMP PRIMARY CRUSHER NO.2
IMAGE
C2-3110-HY-005
3110
00231 A
AI
3110
00231 A
AT
IMAGE
V V
V
3110-OLL-1017-S1A-3"-H
3110-OLL-1013-S1A-3"-H
C2-3110-CN-002
SIZE:
C2-3110-CN-002
JIP CRANE
3110
00232 B
FV
+
3110
00232 B
FIC
3110
00232 B
FE
+
3110
00232 B
FIT
3110-WF-1220-C1A-4"-N
1/2"
1"
3110
00232 A
FV
+
3110
00232 A
FIC
3110
00232 A
FE
+
3110
00232 A
FIT
M
3110-WF-1218-C1A-4"-N
/54 GPM (TYP ALL)
/9.8 GPM (TYP ALL)
M
TO DRAIN
BY VENDOR
TO DRAIN
BY VENDOR
3100
00380
HS
J/SP
3100
00380
XA
3100
00380
II
3100
00301
PI
3100
00302
PIT
3100
00302
PI
3100
00311
PI
3100
00312
PI
3100
00312
PIT
3100
00390
HS
J/SP
3100
00390
XA
3100
00390
II
TO
ATM
TO
ATM
DISCHARGE
PRESSURE @
MAXIMUM 758 KPA (G)
OPERATING 690 KPA (G)
MINIMUM 620 KPA (G)
FAULT
SET @
862.00 KPA (G)
VENDOR SUPPLY
AUTO
DRAIN
DIRT POCKET
L, P2
DISCHARGE
PRESSURE @
MAXIMUM 758 KPA (G)
OPERATING 690 KPA (G)
MINIMUM 620 KPA (G)
SET @
862.00 KPA (G)
VENDOR SUPPLY
AUTO
DRAIN
FAULT
L, P2
DIRT POCKET
C2-3110-CO-002
C2-3110-VS-001
C2-3110-VS-002
SIZE:
MOTOR:
C2-3110-CO-001
PRIMARY CRUSHER AIR COMPRESSOR
SIZE:
MOTOR:
C2-3110-CO-002
PRIMARY CRUSHER AIR COMPRESSOR
3100
00311
PSV
+
BU
1/2" BA
V
V
V
V
3110-AP-1017-C1A-1"-N
3110-AP-1016-C1A-4"-N
C2-3110-CO-001
CH
1" BA
1" BA
1" BA
1" BA
V
V
1" BA
1" BA
1/2"
3100-AP-1025-C1A-1"-N
1" BA
BA
DRAIN
1" BA
3"x2"
BU
3110-AP-1024-C1A-1"-N
3110-AP-1014-C1A-3"-N
3110-AP-1023-C1A-1"-N
3110-AP-1022-C1A-1"-N
3110-AP-1021-C1A-1"-N
3110-AP-1020-C1A-1"-N
3110-AP-1019-C1A-1"-N
1" BA 1" BA 1" BA
CH-2130
3110-AP-1004-C1A-1"-N
3110-AP-1006-C1A-1"-N
3110-AP-1007-C1A-1"-N
3110-AP-1008-C1A-1"-N
3110-AP-1009-C1A-1"-N
3110-AP-1010-C1A-1"-N
3110-AP-1011-C1A-1"-N
3110-AP-1012-C1A-1"-N
AG
GV
LT
ISSUED FOR CLIENT REVIEW
19-Dec-11
B
RP
ISSUED FOR COMBINED REVIEW
08-Jul-11
A
12/19/2011
G. VICENTIJEVIC
A. GUNSON
T. OH
L. TAMELIN
12/19/2011
9:57:04
AM
WBS: 3100
B
PIPING AND INSTRUMENTATION DIAGRAM
PRIMARY CRUSHING AND ORE HANDLING
3100-25J-003
PLANT AIR
V
DRAIN
V
V
V
V 3100
00301
PSV
+
V
BA
1/2"
1/2" BA
3110-AP-1003-C1A-4"-N
3110-AP-1001-C1A-3"-N
BU
BU
3"x2"
1" BA 1" BA 1" BA 1" BA
1" BA
SIZE:
C2-3110-VS-001
PRIMARY CRUSHER AIR RECEIVER
SIZE:
C2-3110-VS-002
PRIMARY CRUSHER AIR RECEIVER
D
4
F
B
A
3
2
1 5 6 8
E
7
C
REV.
APPROVED
CHK.
DES.
REV. DATE REVISION DESCRIPTION
CLIENT
LEAD ENGINEER
SCALE DRAWING NUMBER
CHECK DESIGN CHECK DRAWING
DESIGNED BY DRAWN BY
APPROVAL DATE
APPROVAL DATE
APPROVED
CHK.
DES.
REV. DATE REVISION DESCRIPTION REFERENCE DRAWING No.
1:100
0
1:200
5m
10m
0
5m
10m
15m
20m
1:500
10m
0
20m
30m
40m
50m
1:1000
0
100m
50m
1:20
0
0.5m
1m
1.5m
2m
0
1:25
0.5m
1m
1.5m
1:33
1/3
2.5m
2m
0
1m
2m
3m
0
1:50
1m
2m
3m
4m
5m
CAD FILE NAME: P:0CAD000SPEM**
MODEL UPDATED:
DWG. FILE UPDATED:
MANUAL CHANGES MADE: YES NO YES NO YES NO
PROJECT MANAGER
ENGINEERING MANAGER
AREA PROJECT ENGINEER
REFERENCE DRAWINGS
SAFETY SHARE:
APPROVAL DATE
CONTRACT
NO.
SAFETY SHARE :
BA6CVA1.IGR
NOTICE: THIS DRAWING HAS NOT BEEN PUBLISHED AND IS THE SOLE
PROPERTY OF FLUOR AND IS LENT TO THE BORROWER FOR THEIR
CONFIDENTIAL USE ONLY, AND IN CONSIDERATION OF THE LOAN OF THIS
DRAWING, THE BORROWER PROMISES AND AGREES TO RETURN IT UPON
REQUEST AND AGREES THAT IT WILL NOT BE REPRODUCED, COPIED LENT
OR OTHERWISE DISPOSED OF DIRECTLY OR INDIRECTLY, NOR USED FOR
ANY OTHER PURPOSE OTHER THAN WHICH IT IS FURNISHED.
NONE
Apr 2011
240K-C2-
3110-AP-1015-C1A-1-1/2"-N
3110-AP-1002-C1A-1-1/2"-N
PLANT AIR
DUST SUPPRESION
3401 3100-25J-004
3110-AP-1005-C1A-2"-N
3110-AP-1013-C1A-2"-N PLANT AIR
METAL DETECTOR
3402 3100-25J-006
PLANT AIR
DUST SUPPRESION
3403 3100-25J-005
3110-AP-1018-C1A-2"-N
3110-AP-1026-C1A-2"-N PLANT AIR
METAL DETECTOR
3404 3100-25J-007
RHS
HH, P1
H, P2
3110
00415 B
LAH
3110
00415 A
LE
3110
00403 B
SI
3110
00415 A
LSH
3110
00415 B
LE
3110
00415 A
LAH
3110
00402 B
HSS
3110
32081
HS
J/SP
3110
00431
YI
3110
00402 A
HSS
3110
00403 A
SI
3110
00403
SDI
3110
00401 B
HSS
3110
32081
XA
3110
00403 B
ST
3110
00403 A
SE
3110
32001
LI
3110
00402
HSA
3110
00431
YT
3110
00401 A
HSS
LHS
3110
32001
TI
3110
00403 A
ST
3110
00401
HSA
RHS
P1
3110
00415 B
LSH
3110
00403 B
SE
C
C
T
V
3110
32001
PDI
PRIMARY CRUSED ORE
PRIMARY CRUSHER,
C2-3110-CR-011
1768 3100-25J-001
COARSE ORE CONVEYOR
BELT SCALE, 3120-WIC-00610
1772
3100-25J-006
PRIMARY CRUSHED ORE
COARSE ORE CONVEYOR,
C2-3120-CV-012
1771 3100-25J-006
WASTE OIL
LUBE OIL RESERVOIR
1769 3100-25J-001
P1
LHS
P1
L, P2
RHS
HYDRAULIC
DRIVE
SEE VENDOR
DRAWING
C2-3100-25J-320
P1
H, P1
LHS
3110-DR-1002-C1B-4"-N
3110-DR-1001-C1B-4"-N
SIZE:2.0 mD x 1.4 mH
MATERIAL:
CAPACITY:
TRIM:C1B
C2-3110-TK-010
OIL CONTAINMENT TANK
ES
SIZE: 2700 mm
MATERIAL:
MOTOR:
C2-3110-FE-011
APRON FEEDER
SIZE:N/A
C2-3110-ST-002
COARSE ORE CONVEYOR FEED CHUTE
ES
ES
ES
AG
GV
LT
ISSUED FOR CLIENT REVIEW
19-Dec-11
B
RP
ISSUED FOR COMBINED REVIEW
23-Jun-11
A
12/19/2011
G. VICENTIJEVIC
A. GUNSON
T. OH
L. TAMELIN
12/19/2011
9:49:31
AM
WBS: 3110
B
PIPING AND INSTRUMENTATION DIAGRAM
PRIMARY CRUSHING
3100-25J-004
APRON FEEDER NO. 1
C2-3110-TK-010
C2-3110-ST-002
C2-3110-FE-011
D
4
F
B
A
3
2
1 5 6 8
E
7
C
REV.
APPROVED
CHK.
DES.
REV. DATE REVISION DESCRIPTION
CLIENT
LEAD ENGINEER
SCALE DRAWING NUMBER
CHECK DESIGN CHECK DRAWING
DESIGNED BY DRAWN BY
APPROVAL DATE
APPROVAL DATE
APPROVED
CHK.
DES.
REV. DATE REVISION DESCRIPTION REFERENCE DRAWING No.
1:100
0
1:200
5m
10m
0
5m
10m
15m
20m
1:500
10m
0
20m
30m
40m
50m
1:1000
0
100m
50m
1:20
0
0.5m
1m
1.5m
2m
0
1:25
0.5m
1m
1.5m
1:33
1/3
2.5m
2m
0
1m
2m
3m
0
1:50
1m
2m
3m
4m
5m
CAD FILE NAME: P:0CAD000SPEM**
MODEL UPDATED:
DWG. FILE UPDATED:
MANUAL CHANGES MADE: YES NO YES NO YES NO
PROJECT MANAGER
ENGINEERING MANAGER
AREA PROJECT ENGINEER
REFERENCE DRAWINGS
SAFETY SHARE:
APPROVAL DATE
CONTRACT
NO.
SAFETY SHARE :
BA6CVA1.IGR
NOTICE: THIS DRAWING HAS NOT BEEN PUBLISHED AND IS THE SOLE
PROPERTY OF FLUOR AND IS LENT TO THE BORROWER FOR THEIR
CONFIDENTIAL USE ONLY, AND IN CONSIDERATION OF THE LOAN OF THIS
DRAWING, THE BORROWER PROMISES AND AGREES TO RETURN IT UPON
REQUEST AND AGREES THAT IT WILL NOT BE REPRODUCED, COPIED LENT
OR OTHERWISE DISPOSED OF DIRECTLY OR INDIRECTLY, NOR USED FOR
ANY OTHER PURPOSE OTHER THAN WHICH IT IS FURNISHED.
NONE
Apr 2011
240K-C2-
FAULT
A,B A,B
C2-3110-HY-003
SIZE:
MOTOR:
C2-3110-HY-003
APRON FEEDER HYDRAULIC UNIT
2 X 150 KW
C2-3110-ST-003
SIZE:
C2-3110-ST-003
PRIMARY CRUSHER NO. 1 APRON FEEDER DRIBBLE CHUTE
VENDOR
V
V
V
V
V
V
V
V
M
C2-3110-ZV-019
C2-3110-DC-019
C2-3110-FA-019
TO ATMOSPHERE
PLANT AIR
3401 3100-25J-003
3110-AP-1005-C1A-2"-N
3110
00481
II
3110
00481
XA
3110
00481
HS
FAULT
ST/SP
SIZE:
C2-3110-DC-019
PRIMARY CRUSHING DUST COLLECTOR NO. 1
SIZE:
C2-3110-ZV-019
PRMARY CRUSHING DUST COLLECTOR ROTARY AIR LOCK NO. 1
SIZE:
C2-3110-FA-019
PRIMARY CRUSHING DUST COLLECTOR FAN NO. 1
FILTERED DUST
COARSE ORE CONVEYOR,
C2-3120-CV-012
2870 3100-25J-006
J/SP
3120
00485
HS
V
SIZE:
C2-3120-MA-011
FE-011 SELF CLEANING MAGNET
V
V ES
V
C2-3120-MA-011
C2-3120-BN-001
P2
C2-3120-ST-006
3120
00422
ZAH
3120
00422
ZS
P1
3120
00421
SAL
3120
00421
SSL
SIZE:
C2-3120-BN-001
FE-011 TRAMP METAL BIN
3120
00421
SE
SIZE:
C2-3120-ST-006
FE-011 TRAMP METAL CHUTE
T1
FAULT
3120
00422
ZSHH
3120
00485
II
3120
00422
ZAHH
3120
00485
XA
P1
HYDRAULIC
DUST
COARSE ORE CONVEYOR
NO.1, 3120-CV-012
3861 3100-25J-006
T1
3110
00481
II
3110
00481
XA
3110
00481
HS
FAULT
ST/SP
VENDOR
A,B A,B
A,B
A,B
D
4
F
B
A
3
2
1 5 6 8
E
7
C
REV.
APPROVED
CHK.
DES.
REV. DATE REVISION DESCRIPTION
CLIENT
LEAD ENGINEER
SCALE DRAWING NUMBER
CHECK DESIGN CHECK DRAWING
DESIGNED BY DRAWN BY
APPROVAL DATE
APPROVAL DATE
APPROVED
CHK.
DES.
REV. DATE REVISION DESCRIPTION REFERENCE DRAWING No.
1:100
0
1:200
5m
10m
0
5m
10m
15m
20m
1:500
10m
0
20m
30m
40m
50m
1:1000
0
100m
50m
1:20
0
0.5m
1m
1.5m
2m
0
1:25
0.5m
1m
1.5m
1:33
1/3
2.5m
2m
0
1m
2m
3m
0
1:50
1m
2m
3m
4m
5m
CAD FILE NAME: P:0CAD000SPEM**
MODEL UPDATED:
DWG. FILE UPDATED:
MANUAL CHANGES MADE: YES NO YES NO YES NO
PROJECT MANAGER
ENGINEERING MANAGER
AREA PROJECT ENGINEER
REFERENCE DRAWINGS
SAFETY SHARE:
APPROVAL DATE
CONTRACT
NO.
SAFETY SHARE :
BA6CVA1.IGR
NOTICE: THIS DRAWING HAS NOT BEEN PUBLISHED AND IS THE SOLE
PROPERTY OF FLUOR AND IS LENT TO THE BORROWER FOR THEIR
CONFIDENTIAL USE ONLY, AND IN CONSIDERATION OF THE LOAN OF THIS
DRAWING, THE BORROWER PROMISES AND AGREES TO RETURN IT UPON
REQUEST AND AGREES THAT IT WILL NOT BE REPRODUCED, COPIED LENT
OR OTHERWISE DISPOSED OF DIRECTLY OR INDIRECTLY, NOR USED FOR
ANY OTHER PURPOSE OTHER THAN WHICH IT IS FURNISHED.
NONE
Apr 2011
240K-C2-
3110
00503 A
SE
3110
00502 A
HSS
3110
00502 B
HSS
3110
00503 B
ST
3110
00503 B
SE
3110
00503 B
SI
3110
00502
HSA
3110
00501
HSA
3110
00501 A
HSS
3110
00501 B
HSS
3110
00503 A
ST
3110
00503 A
SI
3110
32101
PDI
3110
32101
TI
3110
32101
LI
3110
32181
XA
3110
32181
HS
HYDRAULIC
DRIVE
SEE VENDOR
DRAWING
C2-3100-25J-321
J/SP
L, P2
RHS
P1
LHS
RHS
LHS
RHS
C2-3110-TK-007
C2-3110-FE-021
SIZE:2.0 mD x 1.4 mH
MATERIAL:
CAPACITY:
TRIM:C1B
C2-3110-TK-007
OIL CONTAINMENT TANK
3110-DR1004-C1B-4"-N
C2-3110-ST-005
3110
00531
YI
3110
00531
YT
C
C
T
V
LHS
P1
HH, P1
H, P2
SIZE:N/A
C2-3110-ST-005
COARSE ORE CONVEYOR FEED CHUTE
SIZE: 2700 mm
MATERIAL:
MOTOR:
C2-3110-FE-021
APRON FEEDER
3110
00515 A
LSH
3110
00515 A
LAH P1
3110
00515 A
LE
3110
00503
SDI
H, P1
3110
00515 B
LSH
3110
00515 B
LAH P1
3110
00515 B
LE
PRIMARY CRUSHED ORE
COARSE ORE CONVEYOR,
C2-3120-CV-022
1835 3100-25J-007
PRIMARY CRUSHED ORE
PRIMARY CRUSHER,
C2-3110-CR-021
1833 3100-25J-002
WASTE OIL
LUBE OIL RESERVOIR
1834 3100-25J-002
ES
ES
ES
ES
AG
GV
LT
ISSUED FOR CLIENT REVIEW
19-Dec-11
B
RP
ISSUED FOR COMBINED REVIEW
23-Jun-11
A
12/19/2011
G. VICENTIJEVIC
A. GUNSON
T. OH
L. TAMELIN
12/19/2011
9:50:14
AM
WBS: 3110
B
PIPING AND INSTRUMENTATION DIAGRAM
PRIMARY CRUSHING
3100-25J-005
APRON FEEDER NO. 2
FAULT
COARSE ORE CONVEYOR
BELT SCALE, 3120-WIC-00710
1902
3100-25J-007
A,B A,B
C2-3110-HY-006
SIZE:
MOTOR:
C2-3110-HY-006
APRON FEEDER HYDRAULIC UNIT
2 X 150 KW
C2-3110-ST-015
SIZE:
C2-3110-ST-015
PRIMARY CRUSHER NO. 2 APRON FEEDER DRIBBLE CHUTE
VENDOR
V
V
V
V
V
V
V V
3110
00581
XA
3110
00581
II
TO ATMOSPHERE
C2-3110-FA-020
C2-3110-DC-020
C2-3110-ZV-020
3110-AP-1018-C1A-2"-N
SIZE:
C2-3110-FA-020
PRIMARY CRUSHING DUST COLLECTOR FAN NO. 2
SIZE:
C2-3110-DC-020
PRIMARY CRUSHING DUST COLLECTOR NO. 2
SIZE:
C2-3110-ZV-020
PRMARY CRUSHING DUST COLLECTOR ROTARY AIR LOCK NO. 2
M
ST/SP
FAULT
3110
00581
HS
PLANT AIR
3403 3100-25J-003
FILTERED DUST
COARSE ORE CONVEYOR,
C2-3120-CV-022
2871 3100-25J-007
3110-DR-1003-C1B-4"-N
V
V
SIZE:
C2-3120-MA-021
FE-021 SELF CLEANING MAGNET
C2-3120-ST-007
3120
00585
XA
V
3120
00585
II
3120
00522
ZAHH
FAULT
P1
3120
00522
ZSHH
L, P1
3120
00522
ZSH
3120
00522
ZAH
P2
V
C2-3120-MA-021
T1
3120
00521
SE
3120
00521
SSL
3120
00521
SA
3120
00585
HS
J/SP
C2-3120-BN-002
SIZE:
C2-3120-BN-002
FE-021 TRAMP METAL BIN
SIZE:
C2-3120-ST-007
FE-021 TRAMP METAL CHUTE
ES
HYDRAULIC
T1
DUST
COARSE ORE CONVEYOR
NO.2, C2-3120-CV-022
3862 3100-25J-007
3110
00581
XA
3110
00581
II
ST/SP
FAULT
3110
00581
HS
VENDOR
A,B A,B
A,B
A,B
T8
GEAR
REDUCER
GEAR
REDUCER
GEAR
REDUCER
3120
00613 B
XY
3120
00613
XIH
3120
00613 A
XY
3120
00613 A
XE
3120
00613 B
XE
3120
00683
XA
3120
00683
II
3120
00681
II
3120
00681
XA
3120
00683 G
TI
3120
00603 A
ST
3120
00602
HSS
3120
00681 G
TE
3120
00631
AT
3120
00609
NA
3120
00604 B
ZSHH
3120
00682
XA
3120
00608 A
XS
LHS
3120
00603 B
SE
3120
00610
WE
3120
00607 A
TE
3120
00604 C
ZSH
LHS
3120
00616
LE
3120
00683 G
TE
3120
00604 B
ZAH
3120
00681 H
TI
3120
00683 H
TE
3120
00603
SDI H, P1
3120
00608 B
XS
RHS
3120
00603 A
SE
3120
00606 A
TI
3120
00616
LIT
3120
00608
XA P1
3120
00610
WIT
3120
00610
SE
3120
00682 G
TE
3120
00605 C
ZSHH
3120
00631
AI
3120
00609
NS
3120
00610
WIC
H, P2
L, P2
3120
00604 C
ZAH
3120
00602
HSA
A-H
3120
00684
HS
J/SP
3120
00681 G
TI
3120
00605 A
ZAH
3120
00605 B
ZSH
3120
00682 G
TI
3120
00605 A
ZSH
RHS
3120
00615 A
LI
3120
00604 A
ZSHH
3120
00604 B
ZSH
LHS
3120
00603 A
SI
P2
3120
00682
II
3120
00603 B
SI
3120
00604 B
ZAHH
3120
00605 B
ZAHH
3120
00605 A
ZSHH
3120
00682 H
TE
3120
00605 B
ZSHH
3120
00681 H
TE
3120
00604 C
ZAHH
3120
00605 B
ZAH
3120
00615
LIT
3120
00605 C
ZAHH
3120
00604 A
ZAHH
3120
00605 A
ZAHH
3120
00604 A
ZAH
3120
00604 A
ZSH
LHS
3120
00601
HSA
3120
00605 C
ZAH
LHS
3120
00684
XA
3120
00616
LI
3120
00607 A
TI
3120
00683 H
TI
3120
00606 A
TE
RHS LHS
3120
00604 C
ZSHH
3120
00605 C
ZSH
3120
00603 B
ST
3120
00684
II
3120
00682 H
TI
3120
00615
LE
3120
00601
HSS
3120
00615
LI
3120
00621
VE
3120
00623
TE
3120
00622
LE
3120
00621
VT
3120
00622
LSL
3120
00622
LAL
3120
00631
VE
3120
00623
TI
3120
00621
VI
3120
00642
LAL
3120
00643
TI
3120
00641
VI
3120
00641
VE
3120
00643
TE
3120
00642
LE
3120
00641
VT
3120
00642
LSL
3120
00633
TE
3120
00632
LE
3120
00633
TI
3120
00632
LSL
3120
00631
VT
3120
00631
VI
3120
00632
LAL
FILTERED DUST
PRIMARY CRUSHING DUST
SUPPRESSION ROTARY AIR
2870 3100-25J-004
PRIMARY CRUSHED ORE
APRON FEEDER,
C2-3110-FE-011
1771 3100-25J-004
FRESH WATER
DISTRIBUTION
1773 5100-25J-014
DUST
PRIMARY CRUSHING DUST
COLLECTOR NO.1,
3861
3100-25J-004
PRIM. CRUSHER SUMP
DISCHARGE TO
EVAPORATION POND
1775
C2-3110-HY-003
APRON FEEDER HYDRAULIC
SYSTEM SPEED CONTROL
1772
3100-25J-004
PLANT AIR
PLANT AIR RECEIVER,
C2-3100-VS-001
3402 3100-25J-003
A-H
FAULT
LHS
A-H
FAULT
FAULT
FAULT
BRG
REAR
H, P2
HH, P1
NOTE 1
TEAR
LHS
LHS
P1
RHS
A-H
WRIM
BRG
REAR
H, P2
HH, P1
P2
WRIM
H, P1
BRG
REAR
H, P2
HH, P1
P2
WRIM
BRG
FRONT
H, P2
HH, P1
BRG
FRONT
H, P2
HH, P1
RHS
P2
BRG
FRONT
H, P2
HH, P1
C2-3110-DC-019
CONTENTS
RHS
P1
RHS
P2
P1
H, P1
P1 P1
P1
RHS
HH, P1
H, P2
RHS
P1
P1
NOTES:
1. INSTALL IN TUNNEL.
A TO K
A TO K
A TO K
A TO K
I
M
A
G
E
LOCK NO.1, C2-3110-ZV-019
RHS
A,B
H, P2
LL, P1
L,P2
HH, P1
H, P2
P2
LHS
P2
SENSOR GUARD
H, P2
HH, P2
H, P2
HH, P1
P2
H, P2
HH, P2
H, P2
HH, P1
P2 P2
H, P2
HH, P1
H, P2
HH, P2
3120
00611
XA
+
C2-3110-PP-001
COARSE ORE STOCKPILE
C2-3120-MD-011
C2-3120-SL-001
T5
2"x3/4"
SIZE: 1,829 m x 460 m
MOTOR: 2796.00 kW
C2-3120-CV-012
COARSE ORE CONVEYOR NO.1
3120-WF- -C1A-2"-N
T5
T5
ES
V
ES
C2-3120-CV-012
ES
ES
V
3120-SL-1781-C1B-6"-N
V
SIZE:
C2-3120-SL-001
CV-012 4-IDLER BELT SCALE
V
V
SIZE:
MATERIAL:
MOTOR:
C2-3110-PP-001
PRIMARY CRUSHER CLEAN-UP PUMP NO.1
V
ES
ES
V
V
V
V
3120-WF-1083-C1A-3"-N
3120-AP-1013-C1A-2"-N
ES
SIZE:
C2-3120-MD-011
CV-012 METAL DETECTOR
V
V
AG
GV
LT
ISSUED FOR CLIENT REVIEW
19-Dec-11
B
RP
ISSUED FOR COMBINED REVIEW
23-Jun-11
A
12/19/2011
G. VICENTIJEVIC
A. GUNSON
T. OH
L TAMELIN
12/19/2011
9:51:23
AM
WBS: 3120
B
PIPING AND INSTRUMENTATION DIAGRAM
PRIMARY CRUSHING DISCHARGE
3100-25J-006
COARSE ORE CONVEYOR NO. 1
V
V
V
V
C2-3120-ZE-001
ES
SIZE:
C2-3120-ZE-001
CV-012 SENSOR GUARD BELT RIP DETECTOR
V
V
V
V
V
ES
V
ES
V
V
V
V V
V
V
ES
V
V
D
4
F
B
A
3
2
1 5 6 8
E
7
C
REV.
APPROVED
CHK.
DES.
REV. DATE REVISION DESCRIPTION
CLIENT
LEAD ENGINEER
SCALE DRAWING NUMBER
CHECK DESIGN CHECK DRAWING
DESIGNED BY DRAWN BY
APPROVAL DATE
APPROVAL DATE
APPROVED
CHK.
DES.
REV. DATE REVISION DESCRIPTION REFERENCE DRAWING No.
1:100
0
1:200
5m
10m
0
5m
10m
15m
20m
1:500
10m
0
20m
30m
40m
50m
1:1000
0
100m
50m
1:20
0
0.5m
1m
1.5m
2m
0
1:25
0.5m
1m
1.5m
1:33
1/3
2.5m
2m
0
1m
2m
3m
0
1:50
1m
2m
3m
4m
5m
CAD FILE NAME: P:0CAD000SPEM**
MODEL UPDATED:
DWG. FILE UPDATED:
MANUAL CHANGES MADE: YES NO YES NO YES NO
PROJECT MANAGER
ENGINEERING MANAGER
AREA PROJECT ENGINEER
REFERENCE DRAWINGS
SAFETY SHARE:
APPROVAL DATE
CONTRACT
NO.
SAFETY SHARE :
BA6CVA1.IGR
NOTICE: THIS DRAWING HAS NOT BEEN PUBLISHED AND IS THE SOLE
PROPERTY OF FLUOR AND IS LENT TO THE BORROWER FOR THEIR
CONFIDENTIAL USE ONLY, AND IN CONSIDERATION OF THE LOAN OF THIS
DRAWING, THE BORROWER PROMISES AND AGREES TO RETURN IT UPON
REQUEST AND AGREES THAT IT WILL NOT BE REPRODUCED, COPIED LENT
OR OTHERWISE DISPOSED OF DIRECTLY OR INDIRECTLY, NOR USED FOR
ANY OTHER PURPOSE OTHER THAN WHICH IT IS FURNISHED.
NONE
Apr 2011
240K-C2-
M
HH, P1
H, P2
L, P2
LL, P1
3120
00618
FV
+
3120
00618
FE
+
3120
00618
FIC
3120
00618
FIT
M
HH, P1
H, P2
L, P2
LL, P1
3120
00619
FV
+
3120
00619
FE
+
3120
00619
FIC
3120
00619
FIT
3120
00617
XV
+
3120
00617
XA MISMATCH
3120
00617
ZS
OP/CL
T8
GEAR
REDUCER
GEAR
REDUCER
GEAR
REDUCER
3120
00783 H
XA
3120
00783 H
II
3120
00781
XA FAULT
3120
00781
II
3120
00702
HSA
3120
00710
WIC
H, P2
L, P2
3120
00705 A
ZAHH
3120
00704 A
ZAHH
3120
00705 C
ZAH
LHS
3120
00782 H
TE
3120
00703 B
SI
3120
00715
LIT
3120
00716
LIT
3120
00781 G
TE
3120
00708 B
XS
LHS
3120
00781 H
TI
3120
00704 B
ZSHH
3120
00705 A
ZSHH
3120
00783 H
TE
3120
00704 A
ZSH
3120
00715 A
LI
3120
00784
HS
J/SP
3120
00782
XA FAULT
3120
00716
LE
3120
00709
NA
3120
00706 A
TE A TO H
J, K
RHS
3120
00713 B
XE
3120
00704 B
ZSH
RHS
3120
00721
VE
3120
00722
LE
3120
00723
TE
3120
00713 A
XE
3120
00705 A
ZSH
3120
00722
LSL
3120
00703 A
ST
3120
00721
VI
3120
00722
LA
3120
00713A
XY
3120
00721
VT
3120
00723
TI
3120
00704 C
ZSHH
3120
00708 A
XS
RHS
3120
00710
SE
3120
00706 A
TI
3120
00713 B
XY
3120
00713
XIH
3120
00732
LA
3120
00733
TI
3120
00731
VT
3120
00731
VE
3120
00733
TE
3120
00732
LE
3120
00732
LSL
3120
00731
VI
3120
00705 C
ZSHH
3120
00741
VT
3120
00731
AI
3120
00741
VI
3120
00742
LA
3120
00743
TI
3120
00742
LE
3120
00743
TE
3120
00741
VE
3120
00704 B
ZAHH
3120
00742
LSL
3120
00781 H
TE
3120
00705 C
ZSH
LHS
3120
00782 H
TI
3120
00702
HSS
3120
00782 G
TI
3120
00783 G
TE
3120
00705 B
ZAHH
3120
00704 C
ZSH
RHS
3120
00704 A
ZAH
3120
00782 G
TE
3120
00705 C
ZAHH
3120
00704 C
ZAHH
3120
00705 B
ZSH
LHS
3120
00705 B
ZAH
3120
00707 A
TI
3120
00710
WE
3120
00783 G
TI
3120
00701
HSA
A-H
LHS
P1
3120
00715
LE
3120
00783 H
TI
3120
00703 B
SE
3120
00731
AT
3120
00784
XL
FAULT
3120
00705 A
ZAH
3120
00708
XA
A,B
P1
3120
00703 A
SI
3120
00709
NS
3120
00784
II
3120
00781 G
TI
3120
00703 B
ST
3120
00704 C
ZAH
3120
00705 B
ZSHH
3120
00704 B
ZAH
3120
00782
II
3120
00703
SDI H, P1
3120
00715
LI
3120
00707 A
TE A TO H
J, K
LHS
3120
00710
WIT
3120
00716
LI
H, P2
LL, P1
L,P2
3120
00704 A
ZSHH
3120
00703 A
SE
3120
00701
HSS
FILTERED DUST
PRIMARY CRUSHING DUST
COLLECTOR ROTARY AIR
2871 3100-25J-005
PLANT AIR
PLANT AIR RECEIVER,
C2-3100-VS-002
3404 3100-25J-003
PRIM. CRUSHER SUMP
DISCHARGE EVAPORATION
POND
1897
PRIMARY CRUSHED ORE
APRON FEEDER,
C2-3110-FE-021
1835 3100-25J-005
FRESH WATER
DISTRIBUTION
1898 5100-25J-014
C2-3110-HY-006
APRON FEEDER HYDRAULIC
SYSTEM SPEED CONTROL
1902
3100-25J-005
A-H
A-H
A-H
FAULT
WRIM
BRG
REAR
H, P2
HH, P1
RHS
P1
P1
P2
TEAR
BRG
REAR
H, P2
HH, P1
LOCK NO.2, C2-3110-ZV-020
CONTENTS
WRIM
A TO H
J, K
A TO H
J, K
BRG
FRONT
H, P2
HH, P1
RHS
BRG
FRONT
H, P2
HH, P1
BRG
REAR
H, P2
HH, P1
H, P2
HH, P1
H, P2
HH, P1
P2
L, P2
IMAGE
H, P2
HH, P1
L, P2
H, P2
HH, P1
H, P1
HH, P1
H, P2
H, P2
HH, P1
L, P2
H, P2
HH, P1
P2
P1
P1
RHS
BRG
FRONT
H, P2
HH, P1
LHS
P2
RHS
P1
P1
LHS
HH, P1
H, P2
WRIM
NOTE 1
LHS
P2
RHS
P1
P2
H, P1
RHS
P2
LHS
NOTES:
1. INSTALL IN TUNNEL.
SENSOR GUARD
T5
T5
3120
00711
XA
+
C2-3120-MD-021
V V
V
V V
V
COARSE ORE STOCKPILE
C2-3120-CV-022
V V
V
V
V
C2-3120-SL-002
V
V
3"x2"
3120-WF- -C1A-2"-N
C2-3110-PP-002
SIZE: 1,829m x 460m
MOTOR: 2796.00 kW
C2-3120-CV-022
COARSE ORE CONVEYOR NO.2
SIZE:
C2-3120-ZE-003
CV-022 SENSOR GUARD BELT RIP DETECTOR
V
V
ES
V
V
T5
2"x3/4"
V
V
V
V
ES
V
V
ES
ES
3120-AP-1026-C1A-2"-N
3120-WF-1084-C1A-3"-N
V
ES
V
ES
3120-AP-1026-C1A-2"-N
SIZE:
C2-3120-SL-002
CV-022 4-IDLER BELT SCALE
SIZE:
C2-3120-MD-021
CV-022 METAL DETECTOR
ES
SIZE: 100mm
MATERIAL:
MOTOR: 56.00 kW
C2-3110-PP-002
PRIMARY CRUSHER CLEAN-UP PUMP NO.2
V
ES
V
3120-SL-1782-C1B-6"-N
V
ES
ES
AG
GV
LT
ISSUED FOR CLIENT REVIEW
19-Dec-11
B
RP
ISSUED FOR COMBINED REVIEW
23-Jun-11
A
12/19/2011
G. VICENTIJEVIC
A. GUNSON
T. OH
L. TAMELIN
12/19/2011
9:52:48
AM
WBS: 3120
B
PIPING AND INSTRUMENTATION DIAGRAM
PRIMARY CRUSHING DISCHARGE
3100-25J-007
COARSE ORE CONVEYOR NO. 2
C2-3120-ZE-003
ES
D
4
F
B
A
3
2
1 5 6 8
E
7
C
REV.
APPROVED
CHK.
DES.
REV. DATE REVISION DESCRIPTION
CLIENT
LEAD ENGINEER
SCALE DRAWING NUMBER
CHECK DESIGN CHECK DRAWING
DESIGNED BY DRAWN BY
APPROVAL DATE
APPROVAL DATE
APPROVED
CHK.
DES.
REV. DATE REVISION DESCRIPTION REFERENCE DRAWING No.
1:100
0
1:200
5m
10m
0
5m
10m
15m
20m
1:500
10m
0
20m
30m
40m
50m
1:1000
0
100m
50m
1:20
0
0.5m
1m
1.5m
2m
0
1:25
0.5m
1m
1.5m
1:33
1/3
2.5m
2m
0
1m
2m
3m
0
1:50
1m
2m
3m
4m
5m
CAD FILE NAME: P:0CAD000SPEM**
MODEL UPDATED:
DWG. FILE UPDATED:
MANUAL CHANGES MADE: YES NO YES NO YES NO
PROJECT MANAGER
ENGINEERING MANAGER
AREA PROJECT ENGINEER
REFERENCE DRAWINGS
SAFETY SHARE:
APPROVAL DATE
CONTRACT
NO.
SAFETY SHARE :
BA6CVA1.IGR
NOTICE: THIS DRAWING HAS NOT BEEN PUBLISHED AND IS THE SOLE
PROPERTY OF FLUOR AND IS LENT TO THE BORROWER FOR THEIR
CONFIDENTIAL USE ONLY, AND IN CONSIDERATION OF THE LOAN OF THIS
DRAWING, THE BORROWER PROMISES AND AGREES TO RETURN IT UPON
REQUEST AND AGREES THAT IT WILL NOT BE REPRODUCED, COPIED LENT
OR OTHERWISE DISPOSED OF DIRECTLY OR INDIRECTLY, NOR USED FOR
ANY OTHER PURPOSE OTHER THAN WHICH IT IS FURNISHED.
NONE
Apr 2011
240K-C2-
M
HH, P1
H, P2
L, P2
LL, P1
3120
00719
FV
+
3120
00719
FE
+
3120
00719
FIC
3120
00719
FIT
M
HH, P1
H, P2
L, P2
LL, P1
3120
00718
FV
+
3120
00718
FE
+
3120
00718
FIC
3120
00718
FIT
DUST
PRIMARY CRUSHING DUST
COLLECTOR NO.2,
3862
3100-25J-005
3120
00717
XV
+
3120
00717
XA MISMATCH
3120
00717
ZS
OP/CL
T5
T5
3210
00101
HSA
3210
00113 A
SI
3210
00102 B
HSS
RHS
3210
00103 B
ST
3210
00104
LSL
3210
00181 H
TE
3210
00181
II
3210
00112 B
HSS
RHS
3210
00101 A
HSS
LHS
3210
00181
XA
3210
00113 B
SI
3210
00114
LSL
P1
3210
00101 B
HSS
LHS
3210
00105 A
LSH
3210
00105 A
LAH
P1
3210
00114
LAL
3210
00113 B
ST
3210
00181
HS
3210
00181 H
TI
BRG
FRONT
H, P2
HH, P1
3210
00181 G
TE
3210
00181 G
TI
3210
00103 A
SE
3210
00113 A
SE
3210
00103 B
SE
3210
00105 B
LSH
3210
00103 B
SI
3210
00111 B
HSS
LHS
3210
00182
HS
3210
00182 H
TI
BRG
FRONT
H, P2
HH, P1
3210
00112 A
HSS
RHS
3210
00111
HSA
3210
00104
LAL
P1
3210
00102 A
HSS
RHS
3210
00112
HSA
RHS
3210
00105 B
LAH
P1 3210
00115 B
LAH
P1
3210
00113 A
ST
3210
00115 B
LSH
3210
00103
SDI
H, P1 3210
00113
SDI
H, P1
3210
00102
HSA
3210
00182 G
TI
3210
00182 H
TE
3210
00182 G
TE
3210
00182
XA
3210
00182
II
3210
00103 A
SI
3210
00113 B
SE
3210
00111 A
HSS
LHS
3210
00103 A
ST
3210
00115 A
LSH
3210
00115 A
LAH
P1
DUST
COARSE ORE RECLAIM DUST
COLLECTOR NO. 1,
1800 3200-25J-007
PRIM. CRUSHER PRODUCT
COARSE ORE RECLAIM
CONVEYOR NO. 1,
1796 3200-25J-005
PRIM. CRUSHER PRODUCT
COARSE ORE RECLAIM
CONVEYOR NO. 1,
1797 3200-25J-005
C2-3210-CV-013
3200-WIC-00510
WEIGHT CONTROL,
C2-3210-CV-013
1798 3200-25J-005
DUCTING
P1
P1 P1
C2-3210-DC-016
C2-3210-CV-013
LHS
RHS
FAULT
A
AFD
BRG
REAR
H, P2
HH, P1
BRG
FRONT
J/SP
BRG
REAR
AFD
BRG
REAR
BRG
REAR
H, P2
HH, P1
A
BRG
FRONT
J/SP
FAULT
LHS
P1
A,B A,B
A,B A,B
DUCTING
DUCTING
C2-3210-ST-030
AG
KM
LT
ISSUED FOR CLIENT REVIEW
23-Dec-11
B
RP
ISSUED FOR COMBINED REVIEW
23-Jun-11
A
12/23/2011
K.MUNDY
A. GUNSON
T. OH
L. TAMELIN
1/3/2012
1:01:06
PM
WBS: 3210
B
PIPING AND INSTRUMENTATION DIAGRAM
COARSE ORE RECLAIM
3200-25J-001
COARSE ORE RECLAIM SHEET 1 OF 4
C2-3210-ST-012
C2-3210-ST-011
C2-3210-ST-025
C2-3210-FE-012
C2-3210-ST-031
C2-3210-FE-013
C2-3210-ST-026
V
ES
V
SIZE:
C2-3210-ST-026
COARSE ORE RECLAIM FEEDER DISCHARGE CHUTE
SIZE:
C2-3210-ST-011
STOCKPILE DISCHARGE CHUTE
V
V
V
SIZE:
C2-3210-ST-031
APRON FEEDER DRIBBLE CHUTE
ES
V V
ES
ES
V
V
SIZE:
C2-3210-ST-030
APRON FEEDER DRIBBLE CHUTE
V
V
ES
V
V
V
V
V
SIZE:
C2-3210-ST-025
COARSE ORE RECLAIM FEEDER DISCHARGE CHUTE
ES
SIZE:
C2-3210-ST-012
STOCKPILE DISCHARGE CHUTE
ES
ES
ES
ES
3210
00117
XA
+
3210
00107
XA
+
SIZE: 1,829 mm
MOTOR: 149.00 kW
C2-3210-FE-012
COARSE ORE RECLAIM APRON FEEDER
SIZE: 1,829 mm
MOTOR: 149.00 kW
C2-3210-FE-013
COARSE ORE RECLAIM APRON FEEDER
D
4
F
B
A
3
2
1 5 6 8
E
7
C
REV.
APPROVED
CHK.
DES.
REV. DATE REVISION DESCRIPTION
CLIENT
LEAD ENGINEER
SCALE DRAWING NUMBER
CHECK DESIGN CHECK DRAWING
DESIGNED BY DRAWN BY
APPROVAL DATE
APPROVAL DATE
APPROVED
CHK.
DES.
REV. DATE REVISION DESCRIPTION REFERENCE DRAWING No.
1:100
0
1:200
5m
10m
0
5m
10m
15m
20m
1:500
10m
0
20m
30m
40m
50m
1:1000
0
100m
50m
1:20
0
0.5m
1m
1.5m
2m
0
1:25
0.5m
1m
1.5m
1:33
1/3
2.5m
2m
0
1m
2m
3m
0
1:50
1m
2m
3m
4m
5m
CAD FILE NAME: P:0CAD000SPEM**
MODEL UPDATED:
DWG. FILE UPDATED:
MANUAL CHANGES MADE: YES NO YES NO YES NO
PROJECT MANAGER
ENGINEERING MANAGER
AREA PROJECTENGINEER
REFERENCE DRAWINGS
SAFETY SHARE:
APPROVAL DATE
CONTRACT
NO.
SAFETY SHARE :
BA6CVA1.IGR
NOTICE: THIS DRAWING HAS NOT BEEN PUBLISHED AND IS THE SOLE
PROPERTY OF FLUOR AND IS LENT TO THE BORROWER FOR THEIR
CONFIDENTIAL USE ONLY, AND IN CONSIDERATION OF THE LOAN OF THIS
DRAWING, THE BORROWER PROMISES AND AGREES TO RETURN IT UPON
REQUEST AND AGREES THAT IT WILL NOT BE REPRODUCED, COPIED LENT
OR OTHERWISE DISPOSED OF DIRECTLY OR INDIRECTLY, NOR USED FOR
ANY OTHER PURPOSE OTHER THAN WHICH IT IS FURNISHED.
NONE
Apr 2011
240K-C2-
D
4
F
B
A
3
2
1 5 6 8
E
7
C
REV.
APPROVED
CHK.
DES.
REV. DATE REVISION DESCRIPTION
CLIENT
LEAD ENGINEER
SCALE DRAWING NUMBER
CHECK DESIGN CHECK DRAWING
DESIGNED BY DRAWN BY
APPROVAL DATE
APPROVAL DATE
APPROVED
CHK.
DES.
REV. DATE REVISION DESCRIPTION REFERENCE DRAWING No.
1:100
0
1:200
5m
10m
0
5m
10m
15m
20m
1:500
10m
0
20m
30m
40m
50m
1:1000
0
100m
50m
1:20
0
0.5m
1m
1.5m
2m
0
1:25
0.5m
1m
1.5m
1:33
1/3
2.5m
2m
0
1m
2m
3m
0
1:50
1m
2m
3m
4m
5m
CAD FILE NAME: P:0CAD000SPEM**
MODEL UPDATED:
DWG. FILE UPDATED:
MANUAL CHANGES MADE: YES NO YES NO YES NO
PROJECT MANAGER
ENGINEERING MANAGER
AREA PROJECTENGINEER
REFERENCE DRAWINGS
SAFETY SHARE:
APPROVAL DATE
CONTRACT
NO.
SAFETY SHARE :
BA6CVA1.IGR
NOTICE: THIS DRAWING HAS NOT BEEN PUBLISHED AND IS THE SOLE
PROPERTY OF FLUOR AND IS LENT TO THE BORROWER FOR THEIR
CONFIDENTIAL USE ONLY, AND IN CONSIDERATION OF THE LOAN OF THIS
DRAWING, THE BORROWER PROMISES AND AGREES TO RETURN IT UPON
REQUEST AND AGREES THAT IT WILL NOT BE REPRODUCED, COPIED LENT
OR OTHERWISE DISPOSED OF DIRECTLY OR INDIRECTLY, NOR USED FOR
ANY OTHER PURPOSE OTHER THAN WHICH IT IS FURNISHED.
NONE
Apr 2011
240K-C2-
LHS
3210
00203
SDI
3210
00203 A
SI
C2-3210-ST-014
LHS RHS
3210
00215 B
LAH
P1
P1
3210
00201 A
HSS P1
3210
00205 B
LAH
P1
3210
00201
HSA
3210
00202
HSA
3210
00213 A
SI
3210
00211
HSA
P1
DUCTING
RHS
C2-3210-FE-015
3210
00212
HSA
3210
00215 B
LSH
P1
LHS RHS
3210
00213 B
SE
3210
00211 A
HSS
C2-3210-ST-033
3210
00203 A
SE
RHS
3210
00212 A
HSS
LHS
3210
00211 B
HSS
3210
00213 B
SI
LHS
RHS
3210
00212 B
HSS
3210
00213 B
ST
LHS
C2-3210-ST-028
3210
00214
LAL
C2-3210-ST-032
3210
00201 B
HSS
3210
00214
LSL
3210
00203 B
SE
P1
3210
00203 B
ST
C2-3210-ST-013
C2-3210-FE-014
3210
00202 B
HSS
3210
00203 A
ST
RHS
3210
00202 A
HSS
C2-3210-ST-027
3210
00205 B
LSH
H, P1
3210
00204
LSL
3210
00213
SDI
3210
00204
LAL
3210
00203 B
SI
3210
00213 A
ST
P1
3210
00213 A
SE
H, P1
DUST
COARSE ORE RECLAIM DUST
COLLECTOR NO. 1,
1907 3200-25J-007
3210-WIC-00510
WEIGHT CONTROL,
C2-3210-CV-013
1911 3200-25J-005
PRIM. CRUSHER PRODUCT
COARSE ORE RECLAIM
CONVEYOR NO. 1,
1801 3200-25J-005
PRIM. CRUSHER PRODUCT
COARSE ORE RECLAIM
CONVEYOR NO. 1,
1802 3200-25J-005
V V
ES
V
ES
ES
SIZE:
C2-3210-ST-014
STOCKPILE DISCHARGE CHUTE
ES
SIZE:
C2-3210-ST-028
COARSE ORE RECLAIM FEEDER DISCHARGE CHUTE
V
ES
V
V
V
SIZE:
C2-3210-ST-027
COARSE ORE RECLAIM FEEDER DISCHARGE CHUTE
V
SIZE:
C2-3210-ST-013
STOCKPILE DISCHARGE CHUTE
V
ES
V
V
SIZE:
C2-3210-ST-032
APRON FEEDER DRIBBLE CHUTE
V
V
V
V
SIZE:
C2-3210-ST-033
APRON FEEDER DRIBBLE CHUTE
V
AG
KM
LT
ISSUED FOR CLIENT REVIEW
23-Dec-11
B
RP
ISSUED FOR COMBINED REVIEW
23-Jun-11
A
12/23/2011
K.MUNDY
A. GUNSON
T. OH
L. TAMELIN
12/23/2011
2:51:07
PM
WBS: 3210
B
PIPING AND INSTRUMENTATION DIAGRAM
COARSE ORE RECLAIM
3200-25J-002
COARSE ORE RECLAIM SHEET 2 OF 4
P1
3210
00205 A
LAH
3210
00205 A
LSH
3210
00215 A
LAH
3210
00215 A
LSH
P1
A, B A, B A, B A, B
ES
ES
ES
ES
DUCTING DUCTING
C2-3210-DC-016
C2-3210-CV-013
C2-3210-CV-013
BRG
REAR
3210
00282
II
3210
00282
XA
3210
00217
XA
+
A
FAULT
3210
00282 G
TE
3210
00282 H
TE
3210
00282 G
TI
3210
00282 H
TI
AFD
BRG
FRONT
H, P2
HH, P1
BRG
REAR
H, P2
HH, P1
3210
00282
HS
J/SP
BRG
FRONT
BRG
REAR
3210
00281
II
3210
00281
XA
3210
00207
XA
+
A
FAULT
3210
00281 G
TE
3210
00281 H
TE
3210
00281 G
TI
3210
00281 H
TI
AFD
BRG
FRONT
H, P2
HH, P1
BRG
REAR
H, P2
HH, P1
3210
00281
HS
J/SP
BRG
FRONT
T5 T5
SIZE: 1,829 mm
MOTOR: 149.00 kW
C2-3210-FE-014
COARSE ORE RECLAIM APRON FEEDER
SIZE: 1,829mm
MOTOR: 149.00 kW
C2-3210-FE-015
COARSE ORE RECLAIM APRON FEEDER
D
4
F
B
A
3
2
1 5 6 8
E
7
C
REV.
APPROVED
CHK.
DES.
REV. DATE REVISION DESCRIPTION
CLIENT
LEAD ENGINEER
SCALE DRAWING NUMBER
CHECK DESIGN CHECK DRAWING
DESIGNED BY DRAWN BY
APPROVAL DATE
APPROVAL DATE
APPROVED
CHK.
DES.
REV. DATE REVISION DESCRIPTION REFERENCE DRAWING No.
1:100
0
1:200
5m
10m
0
5m
10m
15m
20m
1:500
10m
0
20m
30m
40m
50m
1:1000
0
100m
50m
1:20
0
0.5m
1m
1.5m
2m
0
1:25
0.5m
1m
1.5m
1:33
1/3
2.5m
2m
0
1m
2m
3m
0
1:50
1m
2m
3m
4m
5m
CAD FILE NAME: P:0CAD000SPEM**
MODEL UPDATED:
DWG. FILE UPDATED:
MANUAL CHANGES MADE: YES NO YES NO YES NO
PROJECT MANAGER
ENGINEERING MANAGER
AREA PROJECTENGINEER
REFERENCE DRAWINGS
SAFETY SHARE:
APPROVAL DATE
CONTRACT
NO.
SAFETY SHARE :
BA6CVA1.IGR
NOTICE: THIS DRAWING HAS NOT BEEN PUBLISHED AND IS THE SOLE
PROPERTY OF FLUOR AND IS LENT TO THE BORROWER FOR THEIR
CONFIDENTIAL USE ONLY, AND IN CONSIDERATION OF THE LOAN OF THIS
DRAWING, THE BORROWER PROMISES AND AGREES TO RETURN IT UPON
REQUEST AND AGREES THAT IT WILL NOT BE REPRODUCED, COPIED LENT
OR OTHERWISE DISPOSED OF DIRECTLY OR INDIRECTLY, NOR USED FOR
ANY OTHER PURPOSE OTHER THAN WHICH IT IS FURNISHED.
NONE
Apr 2011
240K-C2-
3210
00305 B
LAH
P1
3210
00314
LSL
3210
00314
LAL
3210
00312 B
HSS
RHS
3210
00311 B
HSS
LHS
3210
00312 A
HSS
RHS
3210
00311 A
HSS
LHS
3210
00313 A
SE
3210
00313 A
ST
3210
00313
SDI
H, P1
3210
00315 B
LSH
3210
00315 B
LAH
P1
3210
00313 B
SE
3210
00313 B
ST
3210
00303 A
SE
3210
00303
SDI
H, P1
3210
00304
LAL
3210
00304
LSL
3210
00301 A
HSS
LHS
3210
00305 B
LSH
3210
00302 A
HSS
RHS
3210
00303 A
ST
3210
00302 B
HSS
RHS
3210
00303 B
ST
3210
00303 B
SE
3210
00301 B
HSS
LHS
C2-3210-FE-022
C2-3210-ST-017
C2-3210-ST-043
C2-3210-ST-021
C2-3210-FE-023
C2-3210-ST-018
C2-3210-ST-022
LP1
LP1
DUCTING
3210
00302
HSA
3210
00301
HSA
P1 P1
RHS
LHS
3210
00303 A
SI
3210
00303 B
SI
3210
00312
HSA
3210
00311
HSA
RHS
LHS
P1 P1
3210
00313 B
SI
3210
00313 A
SI
C2-3210-ST-044
DUST
COARSE ORE RECLAIM DUST
COLLECTOR NO. 2,
1917 3200-25J-007
PRIM. CRUSHER PRODUCT
COARSE ORE RECLAIM
CONVEYOR NO. 2,
1918 3200-25J-006
PRIM. CRUSHER PRODUCT
COARSE ORE RECLAIM
CONVEYOR NO. 2,
1919 3200-25J-006
3210-WIC-00610
WEIGHT CONTROL,
C2-3210-CV-023
1920 3200-25J-006
SIZE:
C2-3210-ST-017
STOCKPILE DISCHARGE CHUTE
SIZE:
C2-3210-ST-043
APRON FEEDER DRIBBLE CHUTE
SIZE:
C2-3210-ST-021
COARSE ORE RECLAIM FEEDER DISCHARGE CHUTE
SIZE:
C2-3210-ST-018
STOCKPILE DISCHARGE CHUTE
SIZE:
C2-3210-ST-044
APRON FEEDER DRIBBLE CHUTE
SIZE:
C2-3210-ST-022
COARSE ORE RECLAIM FEEDER DISCHARGE CHUTE
V
V
ES
V
V
V
V
V
ES
V
V
V
ES
ES
V
V
ES
V
V
V
ES
V
AG
KM
LT
ISSUED FOR CLIENT REVIEW
23-Dec-11
B
RP
ISSUED FOR COMBINED REVIEW
23-Jun-11
A
12/23/2011
K.MUNDY
A. GUNSON
T. OH
L. TAMELIN
12/21/2011
10:45:18
AM
WBS: 3210
B
PIPING AND INSTRUMENTATION DIAGRAM
COARSE ORE RECLAIM
3200-25J-003
COARSE ORE RECLAIM SHEET 3 OF 4
3210
00305 A
LAH
P1
3210
00305 A
LSH
3210
00315 A
LSH
3210
00315 A
LAH
P1
A, B A, B A, B A, B
ES
ES
ES
ES
DUCTING DUCTING
C2-3210-DC-017
C2-3210-CV-023
C2-3210-CV-023
BRG
REAR
3210
00382
II
3210
00382
XA
3210
00317
XA
+
A
FAULT
3210
00382 G
TE
3210
00382 H
TE
3210
00382 G
TI
3210
00382 H
TI
AFD
BRG
FRONT
H, P2
HH, P1
BRG
REAR
H, P2
HH, P1
3210
00382
HS
J/SP
BRG
FRONT
BRG
REAR
3210
00381
II
3210
00381
XA
3210
00307
XA
+
A
FAULT
3210
00381 G
TE
3210
00381 H
TE
3210
00381 G
TI
3210
00381 H
TI
AFD
BRG
FRONT
H, P2
HH, P1
BRG
REAR
H, P2
HH, P1
3210
00381
HS
J/SP
BRG
FRONT
T5 T5
SIZE: 1,829 mm
MOTOR: 149.00 kW
C2-3210-FE-022
COARSE ORE RECLAIM APRON FEEDER
SIZE: 1,829mm
MOTOR: 149.00 kW
C2-3210-FE-023
COARSE ORE RECLAIM APRON FEEDER
D
4
F
B
A
3
2
1 5 6 8
E
7
C
REV.
APPROVED
CHK.
DES.
REV. DATE REVISION DESCRIPTION
CLIENT
LEAD ENGINEER
SCALE DRAWING NUMBER
CHECK DESIGN CHECK DRAWING
DESIGNED BY DRAWN BY
APPROVAL DATE
APPROVAL DATE
APPROVED
CHK.
DES.
REV. DATE REVISION DESCRIPTION REFERENCE DRAWING No.
1:100
0
1:200
5m
10m
0
5m
10m
15m
20m
1:500
10m
0
20m
30m
40m
50m
1:1000
0
100m
50m
1:20
0
0.5m
1m
1.5m
2m
0
1:25
0.5m
1m
1.5m
1:33
1/3
2.5m
2m
0
1m
2m
3m
0
1:50
1m
2m
3m
4m
5m
CAD FILE NAME: P:0CAD000SPEM**
MODEL UPDATED:
DWG. FILE UPDATED:
MANUAL CHANGES MADE: YES NO YES NO YES NO
PROJECT MANAGER
ENGINEERING MANAGER
AREA PROJECTENGINEER
REFERENCE DRAWINGS
SAFETY SHARE:
APPROVAL DATE
CONTRACT
NO.
SAFETY SHARE :
BA6CVA1.IGR
NOTICE: THIS DRAWING HAS NOT BEEN PUBLISHED AND IS THE SOLE
PROPERTY OF FLUOR AND IS LENT TO THE BORROWER FOR THEIR
CONFIDENTIAL USE ONLY, AND IN CONSIDERATION OF THE LOAN OF THIS
DRAWING, THE BORROWER PROMISES AND AGREES TO RETURN IT UPON
REQUEST AND AGREES THAT IT WILL NOT BE REPRODUCED, COPIED LENT
OR OTHERWISE DISPOSED OF DIRECTLY OR INDIRECTLY, NOR USED FOR
ANY OTHER PURPOSE OTHER THAN WHICH IT IS FURNISHED.
NONE
Apr 2011
240K-C2-
3210
00405 B
LAH
P1
3210
00414
LSL
3210
00414
LAL
3210
00412 B
HSS
RHS
3210
00411 B
HSS
LHS
3210
00412 A
HSS
RHS
3210
00411 A
HSS
LHS
3210
00413 A
SE
3210
00413 A
ST
3210
00413
SDI
H, P1
3210
00415 B
LSH
3210
00415 B
LAH
P1
3210
00413 B
SE
3210
00413 B
ST
3210
00403 A
SE
3210
00403
SDI
H, P1
3210
00404
LAL
3210
00404
LSL
3210
00401 A
HSS
LHS
3210
00405 B
LSH
3210
00402 A
HSS
RHS
3210
00403 A
ST
3210
00402 B
HSS
RHS
3210
00403 B
ST
3210
00403 B
SE
3210
00401 B
HSS
LHS
C2-3210-FE-024
C2-3210-ST-019
C2-3210-ST-045
C2-3210-ST-023
C2-3210-FE-025
C2-3210-ST-020
C2-3210-ST-024
P1
P1
DUCTING
3210
00402
HSA
3210
00401
HSA
P1 P1
RHS
LHS
3210
00403 A
SI
3210
00403 B
SI
3210
00412
HSA
3210
00411
HSA
RHS
LHS
P1 P1
3210
00413 B
SI
3210
00413 A
SI
C2-3210-ST-046
DUST
COARSE ORE RECLAIM DUST
COLLECTOR NO.2,
1921 3200-25J-007
PRIM. CRUSHER PRODUCT
COARSE ORE RECLAIM
CONVEYOR NO.2,
1922 3200-25J-006
PRIM. CRUSHER PRODUCT
COARSE ORE RECLAIM
CONVEYOR NO.2,
1923 3200-25J-006
3210-WIC-00610
WEIGHT CONTROL,
C2-3210-CV-023
1925 3200-25J-006
SIZE:
C2-3210-ST-019
STOCKPILE DISCHARGE CHUTE
SIZE:
C2-3210-ST-045
APRON FEEDER DRIBBLE CHUTE
SIZE:
C2-3210-ST-023
COARSE ORE RECLAIM FEEDER DISCHARGE CHUTE
SIZE:
C2-3210-ST-024
COARSE ORE RECLAIM FEEDER DISCHARGE CHUTE
SIZE:
C2-3210-ST-046
APRON FEEDER DRIBBLE CHUTE
SIZE:
C2-3210-ST-020
STOCKPILE DISCHARGE CHUTE
ES
V
V V
V
V
V
ES
V
ES
V
V
V
V
ES
V
V
ES
ES
V
V
V
AG
KM
LT
ISSUED FOR CLIENT REVIEW
23-Dec-11
B
RP
ISSUED FOR COMBINED REVIEW
23-Jun-11
A
12/23/2011
K.MUNDY
A. GUNSON
T. OH
L. TAMELIN
12/23/2011
2:55:55
PM
WBS: 3210
B
PIPING AND INSTRUMENTATION DIAGRAM
COARSE ORE RECLAIM
3200-25J-004
COARSE ORE RECLAIM SHEET 4 OF 4
3210
00405 A
LAH
P1
3210
00405 A
LSH
3210
00415 A
LSH
3210
00415 A
LAH
P1
A, B A, B A, B A, B
ES
ES ES
ES
DUCTING
DUCTING
C2-3210-DC-017
C2-3210-CV-023
C2-3210-CV-023
BRG
REAR
3210
00482
II
3210
00482
XA
3210
00417
XA
+
A TO ?
FAULT
3210
00482 G
TE
3210
00482 H
TE
3210
00482 G
TI
3210
00482 H
TI
AFD
BRG
FRONT
H, P2
HH, P1
BRG
REAR
H, P2
HH, P1
3210
00482
HS
J/SP
BRG
FRONT
BRG
REAR
3210
00481
II
3210
00481
XA
3210
00407
XA
+
A
FAULT
3210
00481 G
TE
3210
00481 H
TE
3210
00481 G
TI
3210
00481 H
TI
AFD
BRG
FRONT
H, P2
HH, P1
BRG
REAR
H, P2
HH, P1
3210
00481
HS
J/SP
BRG
FRONT
T5 T5
SIZE: 1,829 mm
MOTOR: 149.00 kW
C2-3210-FE-024
COARSE ORE RECLAIM APRON FEEDER
SIZE: 1,829 mm
MOTOR: 149.00 kW
C2-3210-FE-025
COARSE ORE RECLAIM APRON FEEDER
GEAR
REDUCER
GEAR
REDUCER
GEAR
REDUCER
J-M
J-M
LHS
D, E
T8
3210
00513 A
XY
3210
00513
XI
3210
00513 B
XE
3210
00513 A
XE
3210
00513 B
XY
3210
00503 B
ST
3210
00503 B
SI
3210
00503 B
SE
3210
00503
SDI
H, P1
3210
00525
FIC
HH, P1
H, P2
L, P2
LL, P1
3210
00525
FIT
M
3210
00508
XA
A,B
3210
00582 G
TE
3210
00508 A
XS
3210
00585
XA
3210
00510
SE
3210
00509
NS
3210
00516
LE
3210
00510
WIT
3210
00581 G
TE
3210
00502
HSA
RHS
J-M
3210
00583 G
TI
3210
00507 A
TE
3210
00583 H
TI
BRG
REAR
H, P2
HH, P1
3210
00583
XA
3210
00583
II
3210
00583 G
TE
3210
00516
LIT
3210
00582 H
TI
BRG
REAR
H, P2
HH, P1
3210
00521
SSL
3210
00504
ZSHH
D, E
3210
00502
HSS
RHS
3210
00502
HSA
P1
3210
00515 B
LAH
3210
00501
HSA
3210
00504
ZSH
3210
00581 H
TI
BRG
REAR
H, P2
HH, P1
3210
00584
II
3210
00504
ZSH
LHS
3210
00508 B
XS
RHS
3210
00510
WE
3210
00504
ZAH
3210
00505
ZAHH
3210
00505
ZSH
RHS
3210
00504
ZAH
3210
00582 H
TE
3210
00515 A
LAH
3210
00515 A
LSH
3210
00582
XA
3210
00515 B
LSH
3210
00510
WIC
3210
00583 H
TE
3210
00584
HS
3210
00505
ZA RHS
3210
00502
HSS
RHS
3210
00501
HSS
3210
00522
ZSH
3210
00507 A
TI
H, P2
HH, P1
RHS
3210
00504
ZAHH
3210
00581 H
TE
3210
00584
XA
3210
00521
SE
3210
00505
ZAHH
3210
00503 A
SE
3210
00581
II
3210
00581
XA
3210
00504
ZSHH
3210
00521
SAL P1
3210
00506 A
TE
3210
00585
II
3210
00505
ZAH
3210
00516
LI
3210
00581 G
TI
3210
00505
ZSHH
3210
00505
ZSH
RHS
3210
00522
ZAH
P2
3210
00509
NA
3210
00585
HS
J/SP
3210
00503 A
ST
3210
00506 A
TI
3210
00503 A
SI
3210
00582
II
3210
00501
HSA
3210
00501
HSS
LHS
3210
00504
ZA LHS
3210
00505
ZSHH
3210
00582 G
TI
WRIM
FRESH WATER
DISTRIBUTION
3419 5100-25J-014
COARSE ORE AREA SUMP
EVAPORATION POND
3657
CO. RECLA. APRON FEEDER
WEIGHT CONTROL,
C2-3210-FE-014/015
1911
3200-25J-002
PRIM. CRUSHER PRODUCT
SECONDARY CRUSHER
DISCHARGE CONVEYOR NO.1,
1366 3200-25J-045
CO. RECLA. APRON FEEDER
WEIGHT CONTROL,
C2-3210-FE-012/013
1798
3200-25J-001
PRIM. CRUSHER PRODUCT
COARSE ORE RECLAIM
APRON FEEDER,
1802 3200-25J-002
PRIM. CRUSHER PRODUCT
COARSE ORE RECLAIM
APRON FEEDER,
1801 3200-25J-002
DUST
DUST COLLECTOR,
C2-3320-DC-123
3420 3200-25J-047
PRIM. CRUSHER PRODUCT
COARSE ORE RECLAIM
APRON FEEDER,
1796 3200-25J-001
PRIM. CRUSHER PRODUCT
COARSE ORE RECLAIM
APRON FEEDER,
1797 3200-25J-001
C2-3210-FE-013
FAULT
H1, P2
C2-3210-FE-014
C2-3210-FE-012
C2-3210-FE-015
FAULT
D, E
FAULT
LHS
P1
P1
P2
A-C
P1
LHS
RHS
A TO N
FAULT
H, P2
LL, P1
L, P2
P1
RHS
A-H
FAULT
P2
BRG
FRONT
H, P2
HH, P1
C2-3220-CV-016
P1
A-H
BRG
FRONT
H, P2
HH, P1
LHS
A-C
H, P2
HH, P1
LHS
A-C
TEAR
A-H
P1
RHS
J-M
LHS
D, E
P2
P1
WRIM
A-H
LHS
BRG
FRONT
H, P2
HH, P1
WRIM
J/SP
LHS
P1
P1
P2
A-C
SIZE:
MATERIAL:
MOTOR:
C2-3210-PP-011
COARSE ORE RECLAIM SUMP PUMP
C2-3210-MD-003
AG
KM
LT
ISSUED FOR CLIENT REVIEW
23-Dec-11
B
RP
ISSUED FOR COMBINED REVIEW
23-Jun-11
A
12/23/2011
K.MUNDY
A. GUNSON
T. OH
L. TAMELIN
1/3/2012
1:04:34
PM
WBS: 3210
B
PIPING AND INSTRUMENTATION DIAGRAM
COARSE ORE RECLAIM
3200-25J-005
COARSE ORE RECLAIM CONVEYOR NO. 1
T5
SIZE:
C2-3210-ST-040
COARSE ORE RECLAIM CONVEYOR NO.1 HEAD CHUTE
C2-3210-ST-065
T5
C2-3210-FA-011 C2-3210-FA-012
SIZE:
MOTOR:
C2-3210-FA-011
RECLAIM TUNNEL FAN
SIZE:
MOTOR:
C2-3210-FA-012
RECLAIM TUNNEL TRANSFER FAN
ES
T5
C2-3210-MA-003
C2-3210-ST-040
C2-3210-CV-013
SIZE:
C2-3210-MD-003
CV-013 METAL DETECTOR
C2-3210-BN-009
SIZE:
MATERIAL:
MOTOR:
C2-3210-CV-013
COARSE ORE RECLAIM CONVEYOR NO.1
V V
V
V
V V
C2-3210-PP-011
SIZE:
C2-3210-ST-065
CV-013 TRAMP METAL CHUTE
3210-SL-1001-C1B-6"-N
SIZE:
C2-3210-MA-003
CV-013 SELF CLEANING MAGNET
3210
00511
XA
+
C2-3210-SL-003
V V
V
V
SIZE:
C2-3210-SL-003
CV-013 4-IDLER BELT SCALE
ES
SIZE:
MATERIAL:
CAPACITY:
TRIM:
C2-3210-BN-009
CV-013 TRAMP METAL BIN
V
V
V
V
ES
V
ES
ES
V
V
V
ES
V
3210
00525
FV
+
3210
00525
FE
+
ES
C2-3210-ZE-004
D
4
F
B
A
3
2
1 5 6 8
E
7
C
REV.
APPROVED
CHK.
DES.
REV. DATE REVISION DESCRIPTION
CLIENT
LEAD ENGINEER
SCALE DRAWING NUMBER
CHECK DESIGN CHECK DRAWING
DESIGNED BY DRAWN BY
APPROVAL DATE
APPROVAL DATE
APPROVED
CHK.
DES.
REV. DATE REVISION DESCRIPTION REFERENCE DRAWING No.
1:100
0
1:200
5m
10m
0
5m
10m
15m
20m
1:500
10m
0
20m
30m
40m
50m
1:1000
0
100m
50m
1:20
0
0.5m
1m
1.5m
2m
0
1:25
0.5m
1m
1.5m
1:33
1/3
2.5m
2m
0
1m
2m
3m
0
1:50
1m
2m
3m
4m
5m
CAD FILE NAME: P:0CAD000SPEM**
MODEL UPDATED:
DWG. FILE UPDATED:
MANUAL CHANGES MADE: YES NO YES NO YES NO
PROJECT MANAGER
ENGINEERING MANAGER
AREA PROJECTENGINEER
REFERENCE DRAWINGS
SAFETY SHARE:
APPROVAL DATE
CONTRACT
NO.
SAFETY SHARE :
BA6CVA1.IGR
NOTICE: THIS DRAWING HAS NOT BEEN PUBLISHED AND IS THE SOLE
PROPERTY OF FLUOR AND IS LENT TO THE BORROWER FOR THEIR
CONFIDENTIAL USE ONLY, AND IN CONSIDERATION OF THE LOAN OF THIS
DRAWING, THE BORROWER PROMISES AND AGREES TO RETURN IT UPON
REQUEST AND AGREES THAT IT WILL NOT BE REPRODUCED, COPIED LENT
OR OTHERWISE DISPOSED OF DIRECTLY OR INDIRECTLY, NOR USED FOR
ANY OTHER PURPOSE OTHER THAN WHICH IT IS FURNISHED.
NONE
Apr 2011
240K-C2-
FILTERED DUST
DUST COLLECTOR,
C2-3210-DC-016
3421 3200-25J-007
ES
3210
00522
ZSHH
3210
00522
ZAHH
V
P1
T1
A,B
A,B
A,B
A,B
3 X 597 = 1791 KW
3210
00521
VI
3210
00522
LA
3210
00523
TI
3210
00521
VT
3210
00521
VE
3210
00522
LSL
3210
00522
LE
3210
00523
TE
3210
00531
VI
3210
00532
LA
3210
00533
TI
3210
00531
VT
3210
00531
VE
3210
00532
LSL
3210
00532
LE
3210
00533
TE
3210
00541
VI
3210
00542
LA
3210
00543
TI
3210
00541
VT
3210
00541
VE
3210
00542
LSL
3210
00542
LE
3210
00543
TE
CONTENTS
SIZE:
C2-3210-ZE-004
CV-013 SENSOR GUARD BELT RIP DETECTOR
ES
ES
ES
V
V
V
V
V
V
V
V
V
V
V
V
V
V V
H, P2
HH, P1
L, P2
H, P2
HH, P1
H, P2
HH, P1
H, P2
HH, P1
L, P2
L, P2
H, P2
HH, P1
H, P2
HH, P1
D, E D, E
A-C
A-C
A-F
A-F
A
F
E D
C
B
D
4
F
B
A
3
2
1 5 6 8
E
7
C
REV.
APPROVED
CHK.
DES.
REV. DATE REVISION DESCRIPTION
CLIENT
LEAD ENGINEER
SCALE DRAWING NUMBER
CHECK DESIGN CHECK DRAWING
DESIGNED BY DRAWN BY
APPROVAL DATE
APPROVAL DATE
APPROVED
CHK.
DES.
REV. DATE REVISION DESCRIPTION REFERENCE DRAWING No.
1:100
0
1:200
5m
10m
0
5m
10m
15m
20m
1:500
10m
0
20m
30m
40m
50m
1:1000
0
100m
50m
1:20
0
0.5m
1m
1.5m
2m
0
1:25
0.5m
1m
1.5m
1:33
1/3
2.5m
2m
0
1m
2m
3m
0
1:50
1m
2m
3m
4m
5m
CAD FILE NAME: P:0CAD000SPEM**
MODEL UPDATED:
DWG. FILE UPDATED:
MANUAL CHANGES MADE: YES NO YES NO YES NO
PROJECT MANAGER
ENGINEERING MANAGER
AREA PROJECTENGINEER
REFERENCE DRAWINGS
SAFETY SHARE:
APPROVAL DATE
CONTRACT
NO.
SAFETY SHARE :
BA6CVA1.IGR
NOTICE: THIS DRAWING HAS NOT BEEN PUBLISHED AND IS THE SOLE
PROPERTY OF FLUOR AND IS LENT TO THE BORROWER FOR THEIR
CONFIDENTIAL USE ONLY, AND IN CONSIDERATION OF THE LOAN OF THIS
DRAWING, THE BORROWER PROMISES AND AGREES TO RETURN IT UPON
REQUEST AND AGREES THAT IT WILL NOT BE REPRODUCED, COPIED LENT
OR OTHERWISE DISPOSED OF DIRECTLY OR INDIRECTLY, NOR USED FOR
ANY OTHER PURPOSE OTHER THAN WHICH IT IS FURNISHED.
NONE
Apr 2011
240K-C2-
PRIM. CRUSHER PRODUCT
COARSE ORE RECLAIM
APRON FEEDER,
1919 3200-25J-003
PRIM. CRUSHER PRODUCT
COARSE ORE RECLAIM
APRON FEEDER,
1918 3200-25J-003
PRIM. CRUSHER PRODUCT
COARSE ORE RECLAIM
APRON FEEDER,
1923 3200-25J-004
PRIM. CRUSHER PRODUCT
COARSE ORE RECLAIM
APRON FEEDER,
1922 3200-25J-004
CO. RECLA. APRON FEEDER
WEIGHT CONTROL,
C2-3210-FE-022/023
1920
3200-25J-003
CO. RECLA. APRON FEEDER
WEIGHT CONTROL,
C2-3210-FE-024/025
1925
3200-25J-004
PRIM. CRUSHER PRODUCT
SECONDARY CRUSHER
DISCHARGE CONVEYOR NO.2,
1933 3200-25J-046
AG
KM
LT
ISSUED FOR CLIENT REVIEW
23-Dec-11
B
RP
ISSUED FOR COMBINED REVIEW
23-Jun-11
A
12/23/2011
K.MUNDY
A. GUNSON
T. OH
L. TAMELIN
1/3/2012
1:05:22
PM
WBS: 3210
B
PIPING AND INSTRUMENTATION DIAGRAM
COARSE ORE RECLAIM
3200-25J-006
COARSE ORE RECLAIM CONVEYOR NO. 2
COARSE ORE AREA SUMP
EVAPORATION POND.
3230
FRESH WATER
DISTRIBUTION
3423 5100-25J-014
DUST
DUST COLLECTOR,
C2-3220-DC-153
3424 3200-25J-047
3210
00681 G
TE
C2-3210-FA-014
3210
00610
WIT
3210
00606 A
TI
C2-3210-FA-013
3210
00616
LE
3210
00603 A
ST
3210
00609
NS
3210
00610
SE
J/SP
T5
3210
00685
XA
3210
00685
HS
C2-3210-ST-066
3210
00508 A
XS
3210
00609
NA
SIZE:
C2-3210-ST-049
COARSE ORE RECLAIM CONVEYOR NO.2 HEAD CHUTE
P2
T5
3210
00622
ZAH
3210
00682 G
TE
RHS
A,B
3210
00605
ZSH
C2-3210-MD-004
3210
00508
XA
3210
00605
ZSHH
SIZE:
MATERIAL:
MOTOR:
C2-3210-PP-012
COARSE ORE RECLAIM SUMP PUMP
H, P1
3210
00681 G
TI
P2
A-C
3210
00603
SDI
3210
00616
LI
P1
3210
00603 B
SE
3210
00605
ZAH
P1
3210
00603 B
SI
3210
00685
II
LHS
3210
00603 B
ST
3210
00606 A
TE
J/SP
P1
WRIM
3210
00621
SAL
BRG
FRONT
H, P2
HH, P1
3210
00604
ZSHH
A-H
LHS
3210
00681
XA
WRIM
3210
00681
II
P1
3210
00603 A
SE
P2
V
3210
00605
ZAHH D, E
ES
3210
00621
SE
J-M
LHS
V
3210
00684
XA
RHS
V
3210
00681 H
TE
P1
V
A-H
ES
TEAR
ES
3210
00604
ZAHH
A-C
V
3210
00607 A
TI
3210
00622
ZSH
ES
3210
00601
HSS
H, P2
HH, P1
LHS RHS
A-C
V
3210
00602
HSS
LHS
V
3210
00613 B
XY
RHS
BRG
FRONT
H, P2
HH, P1
V
3210
00605
ZA
V
3210
00684
HS
A-H
3210
00683 H
TE
P1
SIZE:
MATERIAL:
CAPACITY:
TRIM:
C2-3210-BN-004
CV-023 TRAMP METAL BIN
3210
00610
WIC
C2-3220-CV-026
ES
3210
00615 B
LSH
SIZE:
C2-3210-SL-004
CV-023 4-IDLER BELT SCALE
3210
00682
XA
BRG
FRONT
H, P2
HH, P1
V
3210
00615 A
LSH
P2
V
3210
00615 A
LAH
FAULT
V
3210
00682 H
TE
RHS
A-H
V
3210
00604
ZAH
P1
3210
00613 A
XE
RHS
H, P2
LL, P1
L, P2
3210
00613 B
XE
3210
00605
ZSH
FAULT
C2-3210-SL-004
3210
00613
XI
3210
00605
ZAHH
A TO N
3210
00613 A
XY
3210
00604
ZAH
RHS
3210
00611
XA
+
3210
00610
WE
LHS
SIZE:
C2-3210-MA-004
CV-023 SELF CLEANING MAGNET
RHS
P1
3210
00508 B
XS
P2
A-C
3210-SL-1002-C1B-6"-N
LHS
P1
SIZE:
C2-3210-ST-066
CV-023 TRAMP METAL CHUTE
3210
00604
ZSH
P1
3210
00684
II
LHS
C2-3210-PP-012
T8
BRG
REAR
H, P2
HH, P1
FAULT
V
3210
00681 H
TI
D, E
V
GEAR
REDUCER
D, E
3210
00604
ZSH
FAULT
V
GEAR
REDUCER
LHS
3210
00601
HSA
V GEAR
REDUCER
J-M
3210
00615 B
LAH
H1, P2
V
J-M
V
P1
E
3210
00602
HSA
RHS
3210
00602
HSS
SIZE:
MATERIAL:
MOTOR:
C2-3210-CV-023
COARSE ORE RECLAIM CONVEYOR NO.2
C2-3210-BN-004
D, E
3210
00604
ZSHH
3210
00621
SSL
BRG
REAR
H, P2
HH, P1
FAULT
SIZE:
C2-3210-MD-004
CV-023 METAL DETECTOR
3210
00682 H
TI
WRIM
C2-3210-CV-023
3210
00616
LIT
3210
00682 G
TI
3210
00683 G
TE
3210
00605
ZSHH
C2-3210-ST-049
3210
00683
II
LHS
3210
00683
XA
3210
00604
ZA
C2-3210-MA-004
BRG
REAR
H, P2
HH, P1
LHS
T5
3210
00683 H
TI
3210
00601
HSS
ES
3210
00607 A
TE
3210
00601
HSA
3210
00683 G
TI
3210
00682
II
SIZE:
MOTOR:
C2-3210-FA-014
RECLAIM TUNNEL TRANSFER FAN
RHS
J-M
3210
00603 A
SI
SIZE:
MOTOR:
C2-3210-FA-013
RECLAIM TUNNEL FAN
3210
00602
HSA
C2-3210-FE-022
C2-3210-FE-023
C2-3210-FE-024
C2-3210-FE-025
FILTERED DUST
DUST COLLECTOR,
C2-3210-DC-017
3422 3200-25J-007
3210
00625
FIC
HH, P1
H, P2
L, P2
LL, P1
3210
00625
FIT
M
3210
00625
FV
+
3210
00625
FE
+
ES
C2-3210-ZE-005
SIZE:
C2-3210-ZE-005
CV-023 SENSOR GUARD BELT RIP DETECTOR
T1
3210
00622
ZSHH
3210
00622
ZAHH
V
P1
A,B
A,B
A,B
A,B
3210
00621
VI
3210
00622
LA
3210
00623
TI
3210
00621
VT
3210
00621
VE
3210
00622
LSL
3210
00622
LE
3210
00623
TE
3210
00631
VI
3210
00632
LA
3210
00633
TI
3210
00631
VT
3210
00631
VE
3210
00632
LSL
3210
00632
LE
3210
00633
TE
3210
00641
VI
3210
00642
LA
3210
00643
TI
3210
00641
VT
3210
00641
VE
3210
00642
LSL
3210
00642
LE
3210
00643
TE
V
V
V
V
V
H, P2
HH, P1
L, P2
H, P2
HH, P1
H, P2
HH, P1
L, P2
H, P2
HH, P1
H, P2
HH, P2
L, P2
H, P2
HH, P1
CONTENTS
3 X 597 = 1791 KW
ES ES
ES
ES
V
V
V
V
V
V
V
V
V V
D, E
D, E
A-C
A-C
F C
D
B
A-F
A-F
A
M
M
VENDOR
VENDOR
3240
00793
II
3240
00792
HS
3240
00792
XA
3240
00783
II
3240
00793
XA
3240
00782
XA
3240
00782
II
3240
00792
II
3240
00783
XA
3240
00783
HS
ST/SP
3240
00793
HS
ST/SP
3240
00782
HS
FILTERED DUST
COARSE ORE RECLAIM
CONVEYOR NO.2,
3422 3200-25J-006
DUST
DUST CONTROL POINTS
2938 3200-25J-001
DUST
DUST CONTROL POINTS
2939 3200-25J-002
PLANT AIR
2940 3200-25J-017
DUST
DUST CONTROL POINTS
2941 3200-25J-003
DUST
DUST CONTROL POINTS
2942 3200-25J-004
FILTERED DUST
COAUSE ORE RECLAIM
CONVEYOR NO.1,
3421 3200-25J-005
ST/SP
C2-3210-CV-013
C2-3210-CV-023
FAULT
FAULT
ST/SP
FAULT
FAULT
3210-AP-1032-C1A-2"-N
TO ATMOSPHERE
SIZE:
MATERIAL:
MOTOR:
C2-3210-FA-016
COARSE ORE RECLAIM DUST COLLECTOR FAN NO. 1
C2-3210-ZV-081
3210-AP-1073-C1A-2"-N
SIZE:
MOTOR:
C2-3210-ZV-081
COARSE ORE RECLAIM DUST COLLECTOR ROTARY VALVE NO. 2
AG
KM
LT
ISSUED FOR CLIENT REVIEW
23-Dec-11
B
RP
ISSUED FOR COMBINED REVIEW
13-Jul-11
A
12/23/2011
K.MUNDY
A. GUNSON
T. OH
L. TAMELIN
12/21/2011
10:48:46
AM
WBS: 3210
B
PIPING AND INSTRUMENTATION DIAGRAM
COARSE ORE RECLAIM
3200-25J-007
COARSE ORE RECLAIM DUST CONTROLS
C2-3210-ZV-080
C2-3210-DC-017
C2-3210-DC-016
SIZE:
C2-3210-DC-016
COARSE ORE RECLAIM DUST COLLECTOR NO.1
C2-3210-FA-016
TO ATMOSPHERE
SIZE:
C2-3210-DC-017
COARSE ORE RECLAIM DUST COLLECTOR NO. 2
C2-3210-FA-017
SIZE:
MATERIAL:
MOTOR:
C2-3210-FA-017
COARSE ORE RECLAIM DUST COLLECTOR FAN NO. 2
SIZE:
MOTOR:
C2-3210-ZV-080
COARSE ORE RECLAIM DUST COLLECTOR ROTARY VALVE NO. 1
D
4
F
B
A
3
2
1 5 6 8
E
7
C
REV.
APPROVED
CHK.
DES.
REV. DATE REVISION DESCRIPTION
CLIENT
LEAD ENGINEER
SCALE DRAWING NUMBER
CHECK DESIGN CHECK DRAWING
DESIGNED BY DRAWN BY
APPROVAL DATE
APPROVAL DATE
APPROVED
CHK.
DES.
REV. DATE REVISION DESCRIPTION REFERENCE DRAWING No.
1:100
0
1:200
5m
10m
0
5m
10m
15m
20m
1:500
10m
0
20m
30m
40m
50m
1:1000
0
100m
50m
1:20
0
0.5m
1m
1.5m
2m
0
1:25
0.5m
1m
1.5m
1:33
1/3
2.5m
2m
0
1m
2m
3m
0
1:50
1m
2m
3m
4m
5m
CAD FILE NAME: P:0CAD000SPEM**
MODEL UPDATED:
DWG. FILE UPDATED:
MANUAL CHANGES MADE: YES NO YES NO YES NO
PROJECT MANAGER
ENGINEERING MANAGER
AREA PROJECTENGINEER
REFERENCE DRAWINGS
SAFETY SHARE:
APPROVAL DATE
CONTRACT
NO.
SAFETY SHARE :
BA6CVA1.IGR
NOTICE: THIS DRAWING HAS NOT BEEN PUBLISHED AND IS THE SOLE
PROPERTY OF FLUOR AND IS LENT TO THE BORROWER FOR THEIR
CONFIDENTIAL USE ONLY, AND IN CONSIDERATION OF THE LOAN OF THIS
DRAWING, THE BORROWER PROMISES AND AGREES TO RETURN IT UPON
REQUEST AND AGREES THAT IT WILL NOT BE REPRODUCED, COPIED LENT
OR OTHERWISE DISPOSED OF DIRECTLY OR INDIRECTLY, NOR USED FOR
ANY OTHER PURPOSE OTHER THAN WHICH IT IS FURNISHED.
NONE
Apr 2011
240K-C2-
3210
00701
PDAH
3210
00711
PDAH
TEAR
FEEDER AFD DRIVE
3240
01105
ZAH
3240
01104
ZAH
3240
01105
ZSH
3240
01104
ZSH
3240
01117
LAL
3240
01104
ZAHH
3240
01108 A
XS
3240
01103 A
SI
3240
01117
LSL
3240
01110
WI
3240
01102
HSS
RHS
3240
01101
HSA
3240
01105
ZSHH
3240
01104
ZSHH
3240
01110
WE
LHS
3240
01108
XA
P1
3240
01110
SE
3240
01108 B
XA
3240
01103 B
ST
3240
01103
SDI
3240
01103 A
SE
3240
01107 B
TI
3240
01101
HSS
3240
31181 H
TE
BRG
FRONT
3240
31181 G
TE
BRG
REAR
3240
01103 B
SI
3240
01106 A
TI HH, P1
H, P2
3240
01103 A
ST
3240
31181
HS
3240
31181
XA
FAULT
3240
31181
II
3240
01106 A
TE
3240
01107 A
TE
HH, P1
H, P2
3240
01102
HSA
RHS
A,B
3240
01110
WIT
3240
01105
ZAHH
LHS, P1
LHS
RHS
P2
P2
P1
P1
RHS LHS
LHS
A,B
A-B
A,B
VENDOR
H, P1
LHS
A,B
A-B
A,B
RHS
RHS, P1
A,B
A,B
A TO ?
J/SP
P1
V
V
V
V
V
V
V
V
V
V
V
V
C2-3240-ST-051
C2-3240-FE-016
C2-3240-SL-021
V
V
V
V
ES
V
ES
ES
3240
01121
XA
+
M
T1
RHS
M
VENDOR VENDOR
3240
01183
HS
3240
01183
XA
3240
01183
II
3240
01116
LIT
3240
01106 B
TE
3240
01181
II
3240
01107 B
TE
3240
01181
XA
3240
01118
VT
A-D
3240
01115 B
LAH
3240
01182
II
3240
01118
VE
3240
01103 B
SE
3240
01115 A
LAH
P1
3240
01115 A
LSH
3240
01182
XA
3240
01116
LI
3240
01119
LAH
P1
3240
01181
HS
3240
01182
HS
3240
01115 B
LSH
HH, P1
H, P2
3240
01107 A
TI
3240
01106 B
TI HH, P1
H, P2
3240
01119
LSH
3240
01116 A
LI
3240
31181 H
TI
BRG
FRONT
H, P2
HH, P1
3240
31181 G
TI
BRG
REAR
H, P2
HH, P1
3240
01115 B
LE
3240
01116
LE
3240
01118
VI
A-D
3240
01115 A
LE
SEC. CRUSHER PRODUCT
COARSE ORE SURGE BIN
NO.2, C2-3420-BN-012
3232 3200-25J-012
SEC. CRUSHER PRODUCT
SEC. CRUSHER DISCHARGE
CONV. NO.1, C2-3220-CV-016
1787 3200-25J-045
PLANT AIR
1805 3200-25J-017
COARSE SCREEN U/S
TERTIARY CRISHER SURGE
BIN FEED CONVEYOR NO.1,
1364 3200-25J-025
COARSE SCREEN O/S
COARSE SCREEN O/S
CONVEYOR NO.1,
1365 3200-25J-023
DUST
COARSE SCREENING DUST
COLLECTOR NO.1,
2093 3200-25J-020
ST/SP
FAULT
H, P2
L, P2
C2-3240-CV-031
ST/SP
C2-3240-DC-231
LHS
FAULT
DUCTING
HH, P1
H, P2
P1
FAULT
BIN CONTINUED ON
P&ID 3200-25J-012
J/SP
C2-3240-CV-015
EXPERT
SYSTEM
C2-3240-BN-011
V
TO ATMOSPHERE
C2-3240-DC-062
C2-3240-FA-062
C2-3240-ST-061
SIZE:
C2-3240-ST-061
COARSE SCREEN NO.1 O/S CHUTE
SIZE:
MOTOR:
C2-3240-FA-061
C.O. SURGE BIN DUST COLLECTOR NO.1 FAN
SIZE:
MOTOR:
C2-3240-FE-016
C.O. SCREEN NO.1 FEEDER
SIZE:
MOTOR:
C2-3240-SC-011
C.O. SCREEN NO. 1
AG
KM
LT
ISSUED FOR CLIENT REVIEW
23-Dec-11
B
RP
ISSUED FOR COMBINED REVIEW
23-Jun-11
A
12/23/2011
K.MUNDY
A. GUNSON
T. OH
L. TAMELIN
1/3/2012
1:07:17
PM
WBS: 3240
B
PIPING AND INSTRUMENTATION DIAGRAM
SCREENING BUILDING
3200-25J-011
COARSE ORE FEEDER AND SCREEN NO. 1
C2-3240-SC-011
SIZE:
MOTOR:
C2-3240-FA-062
C.O. SURGE BIN DUST COLLECTOR NO.2 FAN
SIZE:
C2-3240-DC-062
C.O. SURGE BIN DUST COLLECTOR NO.2
C2-3240-FA-061
C2-3240-ST-055
C2-3240-ST-071
TO ATMOSPHERE
C2-3240-DC-061
V
V
SIZE:
C2-3240-ST-051
C.O. SURGE BIN RECLAIM FEEDER SKIRT
V
SIZE:
C2-3240-ST-071
C.O. SCREEN NO.1 U/S CHUTE
ES
V
SIZE:
C2-3240-DC-061
C.O. SURGE BIN DUST COLLECTOR NO.1
SIZE:
C2-3240-ST-055
C.O. SCREEN NO.1 FEED CHUTE
SIZE:650 t LIVE
C2-3240-BN-011
C.O. SURGE BIN NO.1
ES ES
ES
SIZE:
C2-3240-SL-021
C.O. SCREEN FEEDER NO.1 VOLUMETRIC BELT SCALE
3220-AP-1047-C1A-2"-N
3240-AP-1279-C1A-2"-N
ES
D
4
F
B
A
3
2
1 5 6 8
E
7
C
REV.
APPROVED
CHK.
DES.
REV. DATE REVISION DESCRIPTION
CLIENT
LEAD ENGINEER
SCALE DRAWING NUMBER
CHECK DESIGN CHECK DRAWING
DESIGNED BY DRAWN BY
APPROVAL DATE
APPROVAL DATE
APPROVED
CHK.
DES.
REV. DATE REVISION DESCRIPTION REFERENCE DRAWING No.
1:100
0
1:200
5m
10m
0
5m
10m
15m
20m
1:500
10m
0
20m
30m
40m
50m
1:1000
0
100m
50m
1:20
0
0.5m
1m
1.5m
2m
0
1:25
0.5m
1m
1.5m
1:33
1/3
2.5m
2m
0
1m
2m
3m
0
1:50
1m
2m
3m
4m
5m
CAD FILE NAME: P:0CAD000SPEM**
MODEL UPDATED:
DWG. FILE UPDATED:
MANUAL CHANGES MADE: YES NO YES NO YES NO
PROJECT MANAGER
ENGINEERING MANAGER
AREA PROJECTENGINEER
REFERENCE DRAWINGS
SAFETY SHARE:
APPROVAL DATE
CONTRACT
NO.
SAFETY SHARE :
BA6CVA1.IGR
NOTICE: THIS DRAWING HAS NOT BEEN PUBLISHED AND IS THE SOLE
PROPERTY OF FLUOR AND IS LENT TO THE BORROWER FOR THEIR
CONFIDENTIAL USE ONLY, AND IN CONSIDERATION OF THE LOAN OF THIS
DRAWING, THE BORROWER PROMISES AND AGREES TO RETURN IT UPON
REQUEST AND AGREES THAT IT WILL NOT BE REPRODUCED, COPIED LENT
OR OTHERWISE DISPOSED OF DIRECTLY OR INDIRECTLY, NOR USED FOR
ANY OTHER PURPOSE OTHER THAN WHICH IT IS FURNISHED.
NONE
Apr 2011
240K-C2-
DUST
DUST COLLECTOR
C2-3240-DC-233
3982 3200-25J-020
DUST
DUST COLLECTOR
C2-3240-DC-232
3983 3200-25J-020
DUCTING
DUCTING
CONVEYOR
CONVEYOR
A-D
3240
01123
PDAH
3240
01122
PDAH
M
LHS
TEAR
T1
M
3240
01204
ZAH
P2 P2
3240
01283
XA
3240
01283
HS
3240
01283
II
3240
01282
II
3240
01205
ZAHH
LHS, P1
3240
01207 B
TE
3240
01281
HS
3240
01205
ZSH
RHS
3240
01203 A
ST
3240
01210
WE
LHS
3240
01203
SDI
3240
01208
XA
P1
3240
01216
LI
3240
01206 B
TE
3240
01204
ZSH
3240
01217
LSL
3240
01201
HSA
3240
01206 A
TE 3240
01202
HSS
RHS
3240
01210
SE
3240
01208 B
XA
3240
01217
LAL
3240
01206 A
TI HH, P1
H, P2
3240
01282
HS
3240
01203 B
SI
3240
01203 B
ST
3240
01215 B
LSH
3240
01215 A
LSH
3240
01215 B
LE
3240
01202
HSA
RHS
A,B
3240
01215 A
LAH P1
3240
01281
XA
3240
01203 A
SI
3240
01215 B
LAH
3240
01203 B
SE
3240
01210
WI
3240
01218
VT
A-D
3240
01205
ZS
3240
01207 A
TE
RHS
HH, P1
H, P2
3240
01203 A
SE
3240
01218
VE
3240
01281
II
3240
01215 A
LE
3240
01207 A
TI
3240
01219
LSH
3240
01216
LT
3240
01219
LAH
P1
3240
01208 A
XS
3240
01204
ZSHH
3240
01204
ZAHH
3240
01216 A
LI
3240
01207 B
TI HH, P1
H, P2
3240
01218
VI
A-D
3240
01282
XA
3240
01206 B
TI HH, P1
H, P2
3240
01201
HSS
3240
01210
WIT
3240
01216
LE
3240
01205
ZAH
SEC. CRUSHER PRODUCT
SEC. CRUSHER DISCHARGE
CONV. NO.1, C2-3220-CV-016
3232 3200-25J-011
SEC. CRUSHER PRODUCT
C2-3200-BN-013
3233 3200-25J-013
COARSE SCREEN O/S
COARSE SCREEN O/S
CONVEYOR NO.1,
1807 3200-25J-023
PLANT AIR
1972 3200-25J-017
DUST
COARSE SCREENING DUST
COLLECTOR NO.2,
2094 3200-25J-020
COARSE SCREEN U/S
TERTIARY CRUSHER SURGE
BIN FEED CONVEYOR NO.1,
1812 3200-25J-025
ST/SP
FAULT
BIN CONTINUED ON
P&ID 3200-25J-013
P1
A,B
H, P2
L, P2
LHS
A,B
P1
EXPERT
SYSTEM
C2-3240-CV-015
LHS
A,B
RHS
ST/SP
DUCTING
BIN CONTINUED ON
P&ID 3200-25J-011
RHS, P1
P1
J/SP
C2-3240-CV-031
A,B
A,B
FAULT
H, P1
C2-3240-DC-231
LHS
FAULT
LHS
RHS
L, P1
A,B
HH, P1
H, P2
C2-3240-SC-012
TO ATMOSPHERE
V
V
SIZE:
MOTOR:
C2-3240-FE-017
C.O. SCREEN NO.2 FEEDER
SIZE:
MOTOR:
C2-3240-FA-063
C.O. SURGE BIN DUST COLLECTOR NO.2 FAN
C2-3240-ST-062
SIZE:
C2-3240-ST-062
COARSE SCREEN NO.2 O/S CHUTE
SIZE:
MOTOR:
C2-3240-SC-012
C.O. SCREEN NO. 2
C2-3240-ST-052
C2-3240-SL-022
V V
V
V
C2-3240-FA-063
V
V
V
V
V
V
C2-3240-FE-017
TO ATMOSPHERE
C2-3240-DC-064
C2-3240-FA-064
AG
KM
LT
ISSUED FOR CLIENT REVIEW
23-Dec-11
B
RP
ISSUED FOR COMBINED REVIEW
23-Jun-11
A
12/23/2011
K.MUNDY
A. GUNSON
T. OH
L. TAMELIN
1/3/2012
11:04:45
AM
WBS: 3240
B
PIPING AND INSTRUMENTATION DIAGRAM
SCREENING BUILDING
3200-25J-012
COARSE ORE FEEDER AND SCREEN NO. 2
C2-3240-ST-072
C2-3240-BN-012
C2-3240-DC-063
C2-3240-ST-056
3240-AP-1280-C1A-2"-N
V
SIZE:650t LIVE
C2-3240-BN-012
C.O. SURGE BIN NO. 2
V
V
3220-AP-1055-C1A-2"-N
V
V
V
SIZE:
C2-3240-SL-022
C.O. SCREEN NO.2 FEEDER VOLUMETRIC BELT SCALE
V
SIZE:
C2-3240-ST-072
C.O. SCREEN U/S CHUTE
SIZE:
C2-3240-ST-052
C.O. SURGE BIN FEEDER SKIRT
SIZE:
C2-3240-ST-056
C.O. SCREEN NO.2 FEED CHUTE
V
ES
ES
SIZE:
C2-3240-DC-063
C.O SURGE BIN DUST COLLECTOR NO.2
ES
V
ES
SIZE:
C2-3240-DC-064
C.O. SURGE BIN DUST COLLECTOR NO.1
SIZE:
MOTOR:
C2-3240-FA-064
C.O. SURGE BIN DUST COLLECTOR NO.1 FAN
D
4
F
B
A
3
2
1 5 6 8
E
7
C
REV.
APPROVED
CHK.
DES.
REV. DATE REVISION DESCRIPTION
CLIENT
LEAD ENGINEER
SCALE DRAWING NUMBER
CHECK DESIGN CHECK DRAWING
DESIGNED BY DRAWN BY
APPROVAL DATE
APPROVAL DATE
APPROVED
CHK.
DES.
REV. DATE REVISION DESCRIPTION REFERENCE DRAWING No.
1:100
0
1:200
5m
10m
0
5m
10m
15m
20m
1:500
10m
0
20m
30m
40m
50m
1:1000
0
100m
50m
1:20
0
0.5m
1m
1.5m
2m
0
1:25
0.5m
1m
1.5m
1:33
1/3
2.5m
2m
0
1m
2m
3m
0
1:50
1m
2m
3m
4m
5m
CAD FILE NAME: P:0CAD000SPEM**
MODEL UPDATED:
DWG. FILE UPDATED:
MANUAL CHANGES MADE: YES NO YES NO YES NO
PROJECT MANAGER
ENGINEERING MANAGER
AREA PROJECTENGINEER
REFERENCE DRAWINGS
SAFETY SHARE:
APPROVAL DATE
CONTRACT
NO.
SAFETY SHARE :
BA6CVA1.IGR
NOTICE: THIS DRAWING HAS NOT BEEN PUBLISHED AND IS THE SOLE
PROPERTY OF FLUOR AND IS LENT TO THE BORROWER FOR THEIR
CONFIDENTIAL USE ONLY, AND IN CONSIDERATION OF THE LOAN OF THIS
DRAWING, THE BORROWER PROMISES AND AGREES TO RETURN IT UPON
REQUEST AND AGREES THAT IT WILL NOT BE REPRODUCED, COPIED LENT
OR OTHERWISE DISPOSED OF DIRECTLY OR INDIRECTLY, NOR USED FOR
ANY OTHER PURPOSE OTHER THAN WHICH IT IS FURNISHED.
NONE
Apr 2011
240K-C2-
VENDOR
VENDOR
ES
ES
FEEDER AFD DRIVE
3240
31281 H
TE
BRG
FRONT
3240
31281 G
TE
BRG
REAR
3240
31281
HS
3240
31281
XA
FAULT
3240
31281
II
VENDOR
A TO ?
J/SP
3240
01221
XA
+
3240
31281 H
TI
BRG
FRONT
H, P2
HH, P1
3240
31281 G
TI
BRG
REAR
H, P2
HH, P1
ES
DUST
DUST COLLECTOR,
C2-3240-DC-233
3984 3200-25J-020
DUST
DUST COLLECTOR,
C2-3240-DC-232
3985 3200-25J-020
ES
DUCTING
DUCTING
CONVEYOR
CONVEYOR
A-D
3240
01223
PDAH
3240
01222
PDAH
M
TEAR
T1
M
3240
01305
ZAH
P1
3240
01304
ZAH
P1
3240
01383
II
3240
01383
HS
3240
01383
XA
3240
01315 A
LSH
3240
01310
SE
3240
01317
LSL
3240
01304
ZSHH
3240
01305
ZSHH
3240
01308 B
XA
3240
01316
LE
3240
01316 A
LI
3240
01306 B
TI HH, P1
H, P2
3240
01303
SDI
3240
01315 B
LE
3240
01307 A
TI
3240
01381
XA
3240
01382
II
3240
01318
VT
A-D
3240
01315 B
LSH
3240
01381
II
3240
01304
ZSH
3240
01315 A
LE
3240
01303 B
SE
3240
01382
XA
3240
01303 A
SE
3240
01301
HSS
3240
01308
XA
A,B
P1
3240
01318
VE
3240
01316
LI
3240
01302
HSA
RHS
A,B
3240
01310
WI
3240
01304
ZAHH
3240
01301
HSA
3240
01315 A
LAH
P1
3240
01310
WE
LHS
3240
01319
LSH
3240
01319
LAH
P1
3240
01310
WIT
3240
01306 A
TE 3240
01302
HSS
RHS
3240
01382
HS
3240
01303 B
SI
3240
01303 A
SI
3240
01307 B
TE
3240
01381
HS
3240
01306 A
TI HH, P1
H, P2
3240
01307 A
TE
HH, P1
H, P2
RHS
3240
01303 B
ST
3240
01307 B
TI HH, P1
H, P2
3240
01318
VI
A-D
3240
01308 A
XS
3240
01316
LT
3240
01305
ZSH
3240
01306 B
TE
3240
01317
LAL
3240
01303 A
ST
3240
01315 B
LAH
3240
01305
ZAHH
LHS, P1
COARSE SCREEN U/S
TERTIARY CRUSHER SURGE
BIN FEED CONVEYOR NO. 1,
1813 3200-25J-025
SEC. CRUSHER PRODUCT
SEC. CRUSHER DISCHARGE
CONV. NO.1, C2-3220-CV-016
3233 3200-25J-012
SEC. CRUSHER PRODUCT
COARSE ORE SURGE BIN
NO.4, C2-3240-BN-014
3235 3200-25J-014
COARSE ORE O/S
COARSE SCREEN O/S
CONVEYOR NO. 1,
1808 3200-25J-023
PLANT AIR
1986 3200-25J-017
DUST
COARSE SCREENING DUST
COLLECTOR NO.1,
2095 3200-25J-020
RHS
LHS
ST/SP
FAULT
BIN CONTINUED ON
P&ID 3200-25J-012
P1
RHS
A,B
A,B
LHS
A,B
RHS
EXPERT
SYSTEM
ST/SP
P1
HH, P1
H, P2
A,B
C2-3240-DC-231
H, P1
A,B A,B
C2-3240-CV-015
RHS, P1
C2-3240-CV-031
FAULT
H, P1
BIN CONTINUED ON
P&ID 3200-25J-014
J/SP
LHS
A,B
P1
H, P2
L, P2
FAULT
DUCTING
LHS
SIZE:
C2-3240-ST-073
C.O. SCREEN NO.3 U/S CHUTE
C2-3240-ST-063
SIZE:
C2-3240-ST-063
COARSE SCREEN NO.3 O/S CHUTE
SIZE:
MOTOR:
C2-3240-SC-013
C.O. SCREEN NO. 3
SIZE:
MOTOR:
C2-3240-FE-018
C.O. SCREEN NO.3 FEEDER
SIZE:
MOTOR:
C2-3240-FA-241
C.O. SURGE BIN DUST COLLECTOR FAN
SIZE:
C2-3240-ST-053
C.O. SURGE BIN FEEDER SKIRT
SIZE:
C2-3240-DC-241
C.O SURGE BIN DUST COLLECTOR (DRY)
SIZE:650t LIVE
C2-3240-BN-013
C.O. SURGE BIN NO.3
C2-3240-BN-013
3220-AP-1054-C1A-2"-N
AG
KM
LT
ISSUED FOR CLIENT REVIEW
23-Dec-11
B
RP
ISSUED FOR COMBINED REVIEW
23-Jun-11
A
12/23/2011
K.MUNDY
A. GUNSON
T. OH
L. TAMELIN
1/3/2012
11:07:22
AM
WBS: 3240
B
PIPING AND INSTRUMENTATION DIAGRAM
SCREENING BUILDING
3200-25J-013
COARSE ORE FEEDER AND SCREEN NO. 3
C2-3240-ST-073
C2-3240-SL-023 C2-3240-FE-018
TO ATMOSPHERE
C2-3240-FA-241
SIZE:
C2-3240-ST-057
C.O. SCREEN NO.3 FEED CHUTE
C2-3240-ST-053
C2-3240-SC-013
C2-3240-ST-057
SIZE:
C2-3240-SL-023
C.O. SCREEN NO.3 FEEDER VOLUMETRIC BELT SCALE
C2-3240-DC-241
3240-AP-1281-C1A-2"-N
V
V
V
V
V V
V
ES
V
ES
ES
ES
ES
V
V V
V
V
V
V
V
ES
V
V
V
V
V
C2-3240-DC-242
C2-3240-FA-242
TO ATMOSPHERE
SIZE:
C2-3240-DC-242
C.O SURGE BIN DUST COLLECTOR (DRY)
SIZE:
MOTOR:
C2-3240-FA-242
C.O. SURGE BIN DUST COLLECTOR FAN
D
4
F
B
A
3
2
1 5 6 8
E
7
C
REV.
APPROVED
CHK.
DES.
REV. DATE REVISION DESCRIPTION
CLIENT
LEAD ENGINEER
SCALE DRAWING NUMBER
CHECK DESIGN CHECK DRAWING
DESIGNED BY DRAWN BY
APPROVAL DATE
APPROVAL DATE
APPROVED
CHK.
DES.
REV. DATE REVISION DESCRIPTION REFERENCE DRAWING No.
1:100
0
1:200
5m
10m
0
5m
10m
15m
20m
1:500
10m
0
20m
30m
40m
50m
1:1000
0
100m
50m
1:20
0
0.5m
1m
1.5m
2m
0
1:25
0.5m
1m
1.5m
1:33
1/3
2.5m
2m
0
1m
2m
3m
0
1:50
1m
2m
3m
4m
5m
CAD FILE NAME: P:0CAD000SPEM**
MODEL UPDATED:
DWG. FILE UPDATED:
MANUAL CHANGES MADE: YES NO YES NO YES NO
PROJECT MANAGER
ENGINEERING MANAGER
AREA PROJECTENGINEER
REFERENCE DRAWINGS
SAFETY SHARE:
APPROVAL DATE
CONTRACT
NO.
SAFETY SHARE :
BA6CVA1.IGR
NOTICE: THIS DRAWING HAS NOT BEEN PUBLISHED AND IS THE SOLE
PROPERTY OF FLUOR AND IS LENT TO THE BORROWER FOR THEIR
CONFIDENTIAL USE ONLY, AND IN CONSIDERATION OF THE LOAN OF THIS
DRAWING, THE BORROWER PROMISES AND AGREES TO RETURN IT UPON
REQUEST AND AGREES THAT IT WILL NOT BE REPRODUCED, COPIED LENT
OR OTHERWISE DISPOSED OF DIRECTLY OR INDIRECTLY, NOR USED FOR
ANY OTHER PURPOSE OTHER THAN WHICH IT IS FURNISHED.
NONE
Apr 2011
240K-C2-
VENDOR
VENDOR
FEEDER AFD DRIVE
3240
31381 H
TE
BRG
FRONT
3240
31381 G
TE
BRG
REAR
3240
31381
HS
3240
31381
XA
FAULT
3240
31381
II
VENDOR
A TO ?
J/SP
3240
01321
XA
+
3240
31381 H
TI
BRG
FRONT
H, P2
HH, P1
3240
31381 G
TI
BRG
REAR
H, P2
HH, P1
ES
ES
DUCTING
DUCTING
CONVEYOR
CONVEYOR
DUST
DUST COLLECTOR,
C2-3240-DC-232
3987 3200-25J-020
DUST
DUST COLLECTOR,
C2-3240-DC-233
3988 3200-25J-020
LHS
A-D
3240
01323
PDAH
3240
01322
PDAH
T1
M
LHS
A,B
TEAR
M
3240
01483
XA
3240
01483
II
3240
01483
HS
3240
01405
ZAH
P2
3240
01404
ZAH
3240
01416
LI
3240
01407 B
TI HH, P1
H, P2
3240
01415 B
LAH
3240
01418
VT
A-D
3240
01408 B
XA
3240
01408 A
XS
3240
01401
HSS
3240
01404
ZSH
3240
01416
LE
3240
01418
VE
3240
01415 A
LE
3240
01410
WE
LHS
3240
01416 A
LI
3240
01410
WIT
3240
01404
ZSHH
3240
01404
ZAHH
3240
01403 B
SI
3240
01401
HSA
3240
01481
XA
3240
01417
LSL
3240
01403
SDI
3240
01402
HSA
RHS
A,B
3240
01406 A
TE
3240
01403 A
ST
3240
01407 B
TE
3240
01481
II
3240
01415 B
LSH
3240
01416
LT
3240
01415 A
LSH
3240
01482
XA
3240
01403 B
ST
3240
01410
SE
3240
01405
ZSHH
A,B
3240
01406 A
TI HH, P1
H, P2
3240
01407 A
TE
HH, P1
H, P2
3240
01415 B
LE
3240
01410
WI
3240
01415 A
LAH
P1
3240
01418
VI
A-D
3240
01482
II
3240
01406 B
TI HH, P1
H, P2
3240
01402
HSS
RHS
3240
01481
HS
3240
01403 A
SI
3240
01417
LAL
3240
01419
LSH
3240
01419
LAH
P1
3240
01405
ZAHH
LHS, P1
3240
01482
HS
3240
01403 A
SE
3240
01407 A
TI
3240
01405
ZSH
3240
01403 B
SE
3240
01406 B
TE
3240
01408
XA
P1
A,B
SEC. CRUSHER PRODUCT
SEC. CRUSHER DISCHARGE
CONV. NO. 1, C2-3220-CV-016
3235 3200-25J-013
COARSE SCREEN U/S
TERTIARY CRUSHER SURGE
BIN FEED CONVEYOR NO. 1,
1814 3200-25J-025
PLANT AIR
1991 3200-25J-017
COARSE SCREEN O/S
COARSE SCREEN O/S
CONVEYOR NO. 1,
1809 3200-25J-023
DUST
COARSE SCREENING DUST
COLLECTOR NO. 1,
2096 3200-25J-020
FAULT
ST/SP
RHS
P2
J/SP
P1
LHS
ST/SP
DUCTING
P1
C2-3240-CV-031
LHS
RHS
A,B
P1
FAULT
EXPERT
SYSTEM
A,B
H, P2
L, P2
BIN CONTINUED ON
P&ID 3200-25J-013
LHS
P1
A,B
LHS
A,B
RHS, P1
C2-3240-DC-231
H, P1
FAULT
C2-3240-CV-015
HH, P1
H, P2
A,B
C2-3240-BN-014
C2-3240-ST-064
SIZE:
C2-3240-ST-064
COARSE SCREEN O/S CHUTE
C2-3240-FE-019
SIZE:
MOTOR:
C2-3240-SC-014
C.O. SCREEN NO. 4
SIZE:
MOTOR:
C2-3240-FE-019
C.O. SCREEN NO.4 FEEDER
SIZE:
MOTOR:
C2-3240-FA-243
C.O. SURGE BIN DUST COLLECTOR FAN
TO ATMOSPHERE
C2-3240-ST-054
SIZE:
C2-3240-DC-243
C.O SURGE BIN DUST COLLECTOR
C2-3240-FA-243
C2-3240-ST-074
C2-3240-SC-014
AG
KM
LT
ISSUED FOR CLIENT REVIEW
23-Dec-11
B
RP
ISSUED FOR COMBINED REVIEW
23-Jun-11
A
12/23/2011
K.MUNDY
A. GUNSON
T. OH
L. TAMELIN
1/3/2012
11:10:13
AM
WBS: 3240
B
PIPING AND INSTRUMENTATION DIAGRAM
SCREENING BUILDING
3200-25J-014
COARSE ORE FEEDER AND SCREEN NO. 4
3220-AP-1053-C1A-2"-N
C2-3240-SL-024
C2-3240-DC-243
SIZE:
C2-3240-ST-074
C.O. SCREEN U/S CHUTE
C2-3240-ST-058
SIZE:
C2-3240-SL-024
C.O. SCREEN NO.4 FEEDER VOLUMETRIC BELT SCALE
SIZE:650t LIVE
C2-3240-BN-014
C.O. SURGE BIN NO. 4
SIZE:
C2-3240-ST-054
C.O. SURGE BIN FEEDER SKIRT
C2-3240-FA-244
C2-3240-DC-244
TO ATMOSPHERE
SIZE:
C2-3240-ST-058
C.O. SCREEN FEED CHUTE
3240-AP-1282-C1A-2"-N
ES
V
ES
V
V
ES
V
V
ES
V
V
V
ES
V
V
V
V
V
V
V
V
V
ES
V
V
V
V
SIZE:
C2-3240-DC-244
C.O. SURGE BIN DUST COLLECTOR
SIZE:
MOTOR:
C2-3240-FA-244
C.O. SURGE BIN DUST COLLECTOR FAN
D
4
F
B
A
3
2
1 5 6 8
E
7
C
REV.
APPROVED
CHK.
DES.
REV. DATE REVISION DESCRIPTION
CLIENT
LEAD ENGINEER
SCALE DRAWING NUMBER
CHECK DESIGN CHECK DRAWING
DESIGNED BY DRAWN BY
APPROVAL DATE
APPROVAL DATE
APPROVED
CHK.
DES.
REV. DATE REVISION DESCRIPTION REFERENCE DRAWING No.
1:100
0
1:200
5m
10m
0
5m
10m
15m
20m
1:500
10m
0
20m
30m
40m
50m
1:1000
0
100m
50m
1:20
0
0.5m
1m
1.5m
2m
0
1:25
0.5m
1m
1.5m
1:33
1/3
2.5m
2m
0
1m
2m
3m
0
1:50
1m
2m
3m
4m
5m
CAD FILE NAME: P:0CAD000SPEM**
MODEL UPDATED:
DWG. FILE UPDATED:
MANUAL CHANGES MADE: YES NO YES NO YES NO
PROJECT MANAGER
ENGINEERING MANAGER
AREA PROJECTENGINEER
REFERENCE DRAWINGS
SAFETY SHARE:
APPROVAL DATE
CONTRACT
NO.
SAFETY SHARE :
BA6CVA1.IGR
NOTICE: THIS DRAWING HAS NOT BEEN PUBLISHED AND IS THE SOLE
PROPERTY OF FLUOR AND IS LENT TO THE BORROWER FOR THEIR
CONFIDENTIAL USE ONLY, AND IN CONSIDERATION OF THE LOAN OF THIS
DRAWING, THE BORROWER PROMISES AND AGREES TO RETURN IT UPON
REQUEST AND AGREES THAT IT WILL NOT BE REPRODUCED, COPIED LENT
OR OTHERWISE DISPOSED OF DIRECTLY OR INDIRECTLY, NOR USED FOR
ANY OTHER PURPOSE OTHER THAN WHICH IT IS FURNISHED.
NONE
Apr 2011
240K-C2-
VENDOR
VENDOR
ES
FEEDER AFD DRIVE
3240
31481 H
TE
BRG
FRONT
3240
31481 G
TE
BRG
REAR
3240
31481
HS
3240
31481
XA
FAULT
3240
31481
II
VENDOR
A TO ?
J/SP
3240
01421
XA
+
3240
31481 H
TI
BRG
FRONT
H, P2
HH, P1
3240
31481 G
TI
BRG
REAR
H, P2
HH, P1
DUCTING
DUCTING
CONVEYOR
CONVEYOR
DUST
DUST COLLECTOR,
C2-3240-DC-232
3989 3200-25J-020
DUST
DUST COLLECTOR,
C2-3240-DC-233
3990 3200-25J-020
ES
RHS
A-D
3240
01423
PDAH
3240
01422
PDAH
D
4
F
B
A
3
2
1 5 6 8
E
7
C
REV.
APPROVED
CHK.
DES.
REV. DATE REVISION DESCRIPTION
CLIENT
LEAD ENGINEER
SCALE DRAWING NUMBER
CHECK DESIGN CHECK DRAWING
DESIGNED BY DRAWN BY
APPROVAL DATE
APPROVAL DATE
APPROVED
CHK.
DES.
REV. DATE REVISION DESCRIPTION REFERENCE DRAWING No.
1:100
0
1:200
5m
10m
0
5m
10m
15m
20m
1:500
10m
0
20m
30m
40m
50m
1:1000
0
100m
50m
1:20
0
0.5m
1m
1.5m
2m
0
1:25
0.5m
1m
1.5m
1:33
1/3
2.5m
2m
0
1m
2m
3m
0
1:50
1m
2m
3m
4m
5m
CAD FILE NAME: P:0CAD000SPEM**
MODEL UPDATED:
DWG. FILE UPDATED:
MANUAL CHANGES MADE: YES NO YES NO YES NO
PROJECT MANAGER
ENGINEERING MANAGER
AREA PROJECTENGINEER
REFERENCE DRAWINGS
SAFETY SHARE:
APPROVAL DATE
CONTRACT
NO.
SAFETY SHARE :
BA6CVA1.IGR
NOTICE: THIS DRAWING HAS NOT BEEN PUBLISHED AND IS THE SOLE
PROPERTY OF FLUOR AND IS LENT TO THE BORROWER FOR THEIR
CONFIDENTIAL USE ONLY, AND IN CONSIDERATION OF THE LOAN OF THIS
DRAWING, THE BORROWER PROMISES AND AGREES TO RETURN IT UPON
REQUEST AND AGREES THAT IT WILL NOT BE REPRODUCED, COPIED LENT
OR OTHERWISE DISPOSED OF DIRECTLY OR INDIRECTLY, NOR USED FOR
ANY OTHER PURPOSE OTHER THAN WHICH IT IS FURNISHED.
NONE
Apr 2011
240K-C2-
M
3240
01581
II
3240
01516
LI
3240
01505
ZSH
3240
01508
XA
P1
3240
01503
SDI
3240
01518
VI
A-D
3240
01504
ZSHH
3240
01508 A
XS
3240
01518
VT
A-D
3240
01504
ZSH
3240
01503 B
SI
3240
01518
VE
3240
01516 A
LI
3240
01515 A
LAH
3240
01516
LT
3240
01516
LE
3240
01582
HS
3240
01507 A
TI
3240
01507 A
TE
HH, P1
H, P2
3240
01507 B
TI
3240
01510
WI
3240
01515 A
LSH
3240
01506 A
TI HH, P1
H, P2
3240
01506 A
TE
3240
01510
WIT
3240
01582
XA
3240
01504
ZAHH 3240
01510
WE
LHS
3240
01582
II
3240
01510
SE
3240
01507 B
TE
HH, P1
H, P2
3240
01506 B
TI HH, P1
H, P2
3240
01506 B
TE
3240
01517
LAL
3240
01519
LAH
P1
3240
01505
ZAHH
LHS, P1
3240
01517
LSL
3240
01503 B
ST
3240
01581
HS
3240
01501
HSA
3240
01519
LSH
3240
01503 B
SE
3240
01502
HSA
3240
01501
HSS
3240
01581
XA
3240
01505
ZSHH
3240
01502
HSS
RHS
A,B
P1
FAULT
J/SP
RHS, P1
EXPERT
SYSTEM
RHS
A,B
L, P1
ST/SP
A,B H, P1
FAULT
DUCTING
BIN CONTINUED ON
P&ID 3200-25J-016
C2-3240-ST-111
C2-3240-SC-021
C2-3240-ST-091
C2-3240-SL-031
C2-3240-ST-081
3220-AP1052-C1A-2"-N
C2-3240-DC-097
C2-3240-FA-097
C2-3240-FE-026
C2-3240-BN-015
H, P2
L, P2
LHS
RHS
A,B
P1
P1
LHS
A,B
A,B
A,B
HH, P1
H, P2
SIZE:
C2-3240-ST-091
C.O. SCREEN FEED CHUTE
SIZE:
C2-3240-ST-111
C.O. SCREEN U/S CHUTE
TO ATMOSPHERE
SIZE:
C2-3240-ST-081
C.O. SURGE BIN FEEDER SKIRT
SIZE:
C2-3240-SL-031
C.O. SCREEN FEEDER NO.5 VOLUMETRIC BELT SCALE
SIZE:
C2-3240-DC-097
C.O. SURGE BIN DUST COLLECTOR
SIZE:650t LIVE
C2-3240-BN-015
C.O. SURGE BIN NO.5
3240
01515 A
LE
3240
01515 B
LE
3240
01515 B
LSH
3240
01515 B
LAH
P1
3240
01503 A
SE
3240
01503 A
ST
3240
01503 A
SI
3240
01508 B
XA
TEAR
C2-3240-DC-042
C2-3240-CV-025
COARSE SCREEN O/S
COARSE SCREEN O/S
CONVEYOR NO. 2,
1942 3200-25J-024
COARSE SCREEN U/S
TERTIARY CRUSHER SURGE
BIN FEED CONVEYOR NO. 2,
1905 3200-25J-026
SEC. CRUSHER PRODUCT
SEC. CRUSHER DISCHARGE
CONV. NO. 2, C2-3220-CV-026
1969 3200-25J-046
PLANT AIR
2007 3200-25J-017
C2-3240-CV-041
T1
V
V
ES
V
ES
ES
V
V
V
V
V
ES
ES
V
AG
KM
LT
ISSUED FOR CLIENT REVIEW
23-Dec-11
B
RP
ISSUED FOR COMBINED REVIEW
23-Jun-11
A
12/23/2011
K.MUNDY
A. GUNSON
T. OH
L. TAMELIN
1/3/2012
11:13:09
AM
WBS: 3240
B
PIPING AND INSTRUMENTATION DIAGRAM
SCREENING BUILDING
3200-25J-015
COARSE ORE FEEDER AND SCREEN NO. 5
RHS LHS
A,B
RHS LHS
SIZE:
C2-3240-ST-115
COARSE SCREEN O/S CHUTE
C2-3240-ST-115
A,B
SIZE:
MOTOR:
C2-3240-SC-021
C.O. SCREEN NO. 5
SIZE:
MOTOR:
C2-3240-FE-026
C.O. SCREEN FEEDER NO. 5
SIZE:
MOTOR:
C2-3240-FA-097
C.O. SURGE BIN DUST COLLECTOR FAN
SEC. CRUSHER PRODUCT
C2-3240-BN-016
3238 3200-25J-016
DUST
COARSE SCREEN DUST
COLLECTOR NO. 5,
3239 3200-25J-020
V
V
RHS
LHS
V
V
V
V
ES
V
V
V
V 3240
01505
ZAH
3240
01504
ZAH
P2
P2
V
V
M
3240
01583
II
3240
01583
HS
3240
01583
XA
ST/SP
FAULT
C2-3240-DC-098
C2-3240-FA-098
TO ATMOSPHERE
SIZE:
MOTOR:
C2-3240-FA-098
C.O. SURGE BIN DUST COLLECTOR FAN
SIZE:
C2-3240-DC-098
C.O. SURGE BIN DUST COLLECTOR
3240-AP-1283-C1A-2"-N
VENDOR
VENDOR
ES
ES
DUCTING
DUCTING
CONVEYOR
CONVEYOR
FEEDER AFD DRIVE
3240
31581 H
TE
BRG
FRONT
3240
31581 G
TE
BRG
REAR
3240
31581
HS
3240
31581
XA
FAULT
3240
31581
II
VENDOR
A TO ?
J/SP
3240
01521
XA
+
3240
31581 H
TI
BRG
FRONT
H, P2
HH, P1
3240
31581 G
TI
BRG
REAR
H, P2
HH, P1
DUST
DUST COLLECTOR,
C2-3240-DC-043
3991 3200-25J-020
DUST
DUST COLLECTOR,
C2-3240-DC-044
3992 3200-25J-020
A-D
3240
01523
PDAH
3240
01522
PDAH
T1
TEAR
A,B
M
LHS
M
VENDOR
3240
01605
ZAH
3240
01604
ZAH
P2
VENDOR
3240
01683
XA
3240
01683
II
3240
01683
HS
3240
01618
VT
A-D
3240
01682
II
3240
01681
XA
3240
01617
LAL
3240
01607 A
TI
3240
01603
SDI
3240
01615 B
LE
3240
01615 A
LSH
3240
01603 B
SE
3240
01682
HS
3240
01604
ZSHH
3240
01603 A
ST
3240
01608
XA
P1
3240
01605
ZAHH
LHS, P1
3240
01603 B
ST
3240
01682
XA
3240
01603 A
SI
3240
01610
WIT
3240
01606 B
TI HH, P1
H, P2
3240
01610
WE
LHS
3240
01601
HSA
3240
01615 B
LAH
3240
01602
HSA
RHS
A,B
3240
01602
HSS
RHS
3240
01610
SE
3240
01615 B
LSH
3240
01607 A
TE
HH, P1
H, P2
3240
01616
LT
3240
01604
ZSH
3240
01618
VE
3240
01619
LSH
3240
01617
LSL
3240
01618
VI
A-D
3240
01601
HSS
3240
01606 B
TE
3240
01607 B
TI HH, P1
H, P2
3240
01616
LI
3240
01615 A
LAH P1
3240
01616
LE
3240
01604
ZAHH
A,B
3240
01605
ZSHH
3240
01619
LAH
P1
3240
01605
ZSH
RHS
3240
01608 B
XA
3240
01608 A
XS
3240
01681
HS
3240
01681
II
3240
01610
WI
3240
01603 A
SE
3240
01615 A
LE
3240
01607 B
TE
3240
01606 A
TI HH, P1
H, P2
3240
01616 A
LI
3240
01606 A
TE
3240
01603 B
SI
PLANT AIR
2018 3200-25J-017
COARSE SCREEN O/S
COARSE SCREEN O/S
CONVEYOR NO. 2,
1943 3200-25J-024
DUST
COARSE SCREEN DUST
COLLECTOR NO. 5,
2099 3200-25J-020
SEC. CRUSHER PRODUCT
SEC. CRUSHER DISCHARGE
CONV. NO. 2, C2-3220-CV-026
3238 3200-25J-015
SEC. CRUSHER PRODUCT
C2-3240-BN-017
3240 3200-25J-021
COARSE SCREEN U/S
TERTIARY CRUSHER SURGE
BINN FEED CONVEYOR NO. 2,
1906 3200-25J-026
RHS
LHS
P2
ST/SP
FAULT
BIN CONTINUED ON
P&ID 3200-25J-015
A,B
LHS
LHS
A,B
ST/SP
BIN CONTINUED ON
P&ID 3200-25J-021
P1
H, P1
P1
H, P2
L, P2
P1
C2-3240-DC-042
LHS
FAULT
J/SP
A,B
A,B
RHS, P1
A,B
RHS
HH, P1
H, P2
FAULT
P1
DUCTING
C2-3240-CV-025
C2-3240-CV-041
EXPERT
SYSTEM
A,B
C2-3240-SC-022
C2-3240-SL-032
SIZE:
MOTOR:
C2-3240-FA-099
C.O. SURGE BIN DUST COLLECTOR FAN
SIZE:
C2-3240-ST-116
COARSE SCREEN O/S CHUTE
C2-3240-ST-116
SIZE:
MOTOR:
C2-3240-SC-022
C.O. SCREEN NO. 6
SIZE:
MOTOR:
C2-3240-FE-027
C.O. SCREEN FEEDER NO. 6
C2-3240-ST-082
TO ATMOSPHERE
C2-3240-BN-016
3220-AP-1051-C1A-2"-N
C2-3240-DC-099
SIZE:650t LIVE
C2-3240-BN-016
C.O. SURGE BIN NO.6
AG
KM
LT
ISSUED FOR CLIENT REVIEW
23-Dec-11
B
RP
ISSUED FOR COMBINED REVIEW
23-Jun-11
A
12/23/2011
K.MUNDY
A. GUNSON
T. OH
L. TAMELIN
1/3/2012
1:12:54
PM
WBS: 3240
B
PIPING AND INSTRUMENTATION DIAGRAM
SCREENING BUILDING
3200-25J-016
COARSE ORE FEEDER AND SCREEN NO. 6
C2-3240-ST-092
C2-3240-FE-027
SIZE:
C2-3240-ST-112
C.O. SCREEN U/S CHUTE
C2-3240-ST-112
SIZE:
C2-3240-SL-032
C.O. SCREEN FEEDER NO.6 VOLUMETRIC BELT SCALE
SIZE:
C2-3240-DC-099
C.O. SURGE BIN DUST COLLECTOR (DRY)
SIZE:
C2-3240-ST-092
C.O. SCREEN FEED CHUTE
SIZE:
C2-3240-ST-082
C.O. SURGE BIN FEEDER SKIRT
C2-3240-FA-099
3240-AP-1284-C1A-2"-N
ES
V
V
V
V
V
V
ES
ES
ES
ES
V
V
V
V V
V
V
V
V
ES
V
V
V
V
V
V
C2-3240-FA-100
C2-3240-DC-100
TO ATMOSPHERE
SIZE:
C2-3240-DC-100
C.O. SURGE BIN DUST COLLECTOR (DRY)
SIZE:
MOTOR:
C2-3240-FA-100
C.O. SURGE BIN DUST COLLECTOR FAN
ES
D
4
F
B
A
3
2
1 5 6 8
E
7
C
REV.
APPROVED
CHK.
DES.
REV. DATE REVISION DESCRIPTION
CLIENT
LEAD ENGINEER
SCALE DRAWING NUMBER
CHECK DESIGN CHECK DRAWING
DESIGNED BY DRAWN BY
APPROVAL DATE
APPROVAL DATE
APPROVED
CHK.
DES.
REV. DATE REVISION DESCRIPTION REFERENCE DRAWING No.
1:100
0
1:200
5m
10m
0
5m
10m
15m
20m
1:500
10m
0
20m
30m
40m
50m
1:1000
0
100m
50m
1:20
0
0.5m
1m
1.5m
2m
0
1:25
0.5m
1m
1.5m
1:33
1/3
2.5m
2m
0
1m
2m
3m
0
1:50
1m
2m
3m
4m
5m
CAD FILE NAME: P:0CAD000SPEM**
MODEL UPDATED:
DWG. FILE UPDATED:
MANUAL CHANGES MADE: YES NO YES NO YES NO
PROJECT MANAGER
ENGINEERING MANAGER
AREA PROJECTENGINEER
REFERENCE DRAWINGS
SAFETY SHARE:
APPROVAL DATE
CONTRACT
NO.
SAFETY SHARE :
BA6CVA1.IGR
NOTICE: THIS DRAWING HAS NOT BEEN PUBLISHED AND IS THE SOLE
PROPERTY OF FLUOR AND IS LENT TO THE BORROWER FOR THEIR
CONFIDENTIAL USE ONLY, AND IN CONSIDERATION OF THE LOAN OF THIS
DRAWING, THE BORROWER PROMISES AND AGREES TO RETURN IT UPON
REQUEST AND AGREES THAT IT WILL NOT BE REPRODUCED, COPIED LENT
OR OTHERWISE DISPOSED OF DIRECTLY OR INDIRECTLY, NOR USED FOR
ANY OTHER PURPOSE OTHER THAN WHICH IT IS FURNISHED.
NONE
Apr 2011
240K-C2-
ES
FEEDER AFD DRIVE
3240
31681 H
TE
BRG
FRONT
3240
31681 G
TE
BRG
REAR
3240
31681
HS
3240
31681
XA
FAULT
3240
31681
II
VENDOR
A TO ?
J/SP
3240
01621
XA
+
3240
31681 H
TI
BRG
FRONT
H, P2
HH, P1
3240
31681 G
TI
BRG
REAR
H, P2
HH, P1
DUCTING
DUCTING
CONVEYOR
CONVEYOR
DUST
DUST COLLECTOR,
C2-3240-DC-043
3993 3200-25J-020
DUST
DUST COLLECTOR,
C2-3240-DC-044
3994 3200-25J-020
RHS
A-D
3240
01623
PDAH
3240
01622
PDAH
3960
01702
PI
3220
01703
PIT
3220
01703
PI L, P2
3220
01791
HS
J/SP
3220
01791
JI
3220
01791 H
TI
BRG
FRONT
H, P2
HH, P1
3220
01791 G
TI
3220
01791 H
TE
3220
01791 G
TE
3220
01791
XA
3220
01791
II
3220
01781
XA
3220
01781 H
TI
BRG
FRONT
H, P2
HH, P1
3220
01781 G
TI
3220
01781
HS
J/SP
3220
01781
JI
3220
01781 H
TE
3220
01781 G
TE
3220
01781
II
TO
DRAIN
CLOSED LOOP CWR
HEADER
3425
3200-25J-084
PLANT AIR
HPGR SURGE BIN DUST
COLLECTOR, C2-3230-DC-072
2996 3200-25J-050
PLANT AIR
HPGR BIN DUST COLLECTOR,
C2-3230-DC-073
2997 3200-25J-052
PLANT AIR
DISTRIBUTION
2985 3900-25J-021
PLANT AIR
COARSE ORE SCREENING
DUST COLLECTORS
2987
3200-25J-020
PLANT AIR
SECONDARY CRUSHER DUST
COLLECTORS
2988
3200-25J-047
PLANT AIR
SECONDARY CRUSHER
SURGE BIN DUST
2989 3200-25J-032
PLANT AIR
SECONDARY CRUSHER
SURGE BIN DUST
2990 3200-25J-031
PLANT AIR
SECONDARY CRUSHER
SURGE BIN DUST
2991 3200-25J-027
PLANT AIR
SECONDARY CRUSHER
SURGE BIN DUST
2992 3200-25J-035
PLANT AIR
SECONDARY CRUSHER
SURGE BIN DUST
2993 3200-25J-034
PLANT AIR
SECONDARY CRUSHER
SURGE BIN DUST
2994 3200-25J-033
PLANT AIR
HPGR SURGE BIN DUST
COLLECTOR, C2-3230-DC-071
2995 3200-25J-048
PLANT AIR
HPGR BIN DUST COLLECTOR,
C2-3230-DC-074
2998 3200-25J-054
PLANT AIR
C.O. SURGE BIN DUST
COLLECTOR, C2-3240-DC-099
3009 3200-25J-021
PLANT AIR
C.O. SURGE BIN DUST
COLLECTOR, C2-3240-DC-100
3010 3200-25J-022
PLANT AIR
HPGR BIN DUST COLLECTOR,
C2-3230-DC-181
2999 3200-25J-056
PLANT AIR
HPGR BIN DUST COLLECTOR,
C2-3230-DC-182
3000 3200-25J-058
PLANT AIR
HPGR BIN DUST COLLECTOR,
C2-3230-DC-183
3001 3200-25J-060
PLANT AIR
HPGR BIN DUST COLLECTOR,
C2-3230-DC-184
3002
TO ATM
TO
DRAIN
VENDOR
VENDOR
DISCHARGE PRESSURE @
MAXIMUM 758 KPA (G)
OPERATING 690 KPA (G)
MINIMUM 620 KPA (G)
AUTO
DRAIN
DISCHARGE PRESSURE @
MAXIMUM 758 KPA (G)
OPERATING 690 KPA (G)
MINIMUM 620 KPA (G)
SET @
862.00 KPA (G)
DIRT POCKET
CIVIL
BRG
REAR
H, P2
HH, P1
BRG
REAR
H, P2
HH, P1
FAULT
FAULT
V
V
V
V V
3220-AP-1028-C1A-6"-N
3220-AP-1027-C1A-6"-N
4"x3"
6"x5"
4"x3"
4"x3"
6"x5"
4"x3"
AG
KM
LT
ISSUED FOR CLIENT REVIEW
23-Dec-11
B
RP
ISSUED FOR COMBINED REVIEW
13-Jul-11
A
12/23/2011
K.MUNDY
A. GUNSON
T. OH
L. TAMELIN
1/3/2012
1:15:35
PM
WBS: 3220
B
PIPING AND INSTRUMENTATION DIAGRAM
SECONDARY CRUSHING
3200-25J-017
PLANT AIR
BU-
BU-
BU-
3220-AP-1030-C1A-6"-N
3220-AP-1101-C1A-1"-N
3220-AP-1099-C1A-1"-N
3220-AP-1098-C1A-1"-N
3220-AP-1097-C1A-1"-N
3220-AP-1096-C1A-1"-N
BA-
BA-
BA-
BA-
BA-
BA- 3220-AP-1095-C1A-1"-N
BA- 3220-AP-1094-C1A-1"-N
BA- 3220-AP-1093-C1A-1"-N
3220-AP-1092-C1A-1"-N
BA-
3220-AP-1077-C1A-1"-N
BA-
BA- 3220-AP-1076-C1A-1"-N
BA-
BA-
BA-
BA-
BA-
BA-
BA-
BA-
BA-
BA-
BA-
BA-
BA-
BA-
BA-
BA-
BA-
BA-
BA-
BA-
BA-
BA-
BA-
3220-AP-1027-C1A-6"-N
3220-AP-1041-C1A-2"-N
3220-AP-1057-C1A-2"-N
3220-AP-1064-C1A-1"-N
C2-3220-CO-021
3220-AP-1065-C1A-2"-N
V
3220-AP-1100-C1A-1"-N
3220-AP-1078-C1A-2"-N 3220-AP-1080-C1A-1"-N
3220-AP-1079-C1A-1"-N
3220-AP-1081-C1A-2"-N
3220-AP-1082-C1A-2"-N
3220-AP-1083-C1A-1"-N
3220-AP-1034-C1A-1"-N
C2-3220-CO-022
2"x1"
6"x3"
BU-
3220-AP-1052-C1A-2"-N
3220-AP-1051-C1A-2"-N
3220-AP-1050-C1A-1"-N
BA-
BA-
BA-
CH- BU-
6"x4"
1/2"
BA-
BA-
BA-
3220-AP-1049-C1A-2"-N
3220-AP-1048-C1A-2"-N
3220-AP-1056-C1A-1"-N
C2-3220-VS-011
V
DRAIN
V
3960
01701
PSV
+
V
V
V
V
3/4"
3220-AP-1046-C1A-1"-N
3220-AP-1045-C1A-1"-N
3220-AP-1044-C1A-1"-N
3220-AP-1043-C1A-1"-N
3220-AP-1042-C1A-1"-N
3220-AP-1059-C1A-1"-N
3220-AP-1058-C1A-1"-N
3220-AP-1061-C1A-1"-N
3220-AP-1060-C1A-1"-N
3220-AP-1063-C1A-1"-N
3220-AP-1062-C1A-1"-N
3220-AP-1072-C1A-1"-N
3220-AP-1071-C1A-1"-N
3220-AP-1070-C1A-1"-N
3220-AP-1069-C1A-1"-N
3220-AP-1068-C1A-1"-N
3220-AP-1067-C1A-1"-N
3220-AP-1066-C1A-1"-N
3220-AP-1090-C1A-1"-N
3220-AP-1088-C1A-1"-N
3220-AP-1091-C1A-2"-N
3220-AP-1089-C1A-2"-N
SIZE:
MATERIAL:
CAPACITY:
TRIM:
C2-3220-VS-011
SEC./TERT. CRUSHING PLANT AIR RECEIVER
SIZE:
MATERIAL:
MOTOR:
C2-3220-CO-022
SEC./TERT. CRUSHING PLANT AIR COMPRESSOR
SIZE:
MATERIAL:
MOTOR:
C2-3220-CO-021
SEC./TERT. CRUSHING PLANT AIR COMPRESSOR
D
4
F
B
A
3
2
1 5 6 8
E
7
C
REV.
APPROVED
CHK.
DES.
REV. DATE REVISION DESCRIPTION
CLIENT
LEAD ENGINEER
SCALE DRAWING NUMBER
CHECK DESIGN CHECK DRAWING
DESIGNED BY DRAWN BY
APPROVAL DATE
APPROVAL DATE
APPROVED
CHK.
DES.
REV. DATE REVISION DESCRIPTION REFERENCE DRAWING No.
1:100
0
1:200
5m
10m
0
5m
10m
15m
20m
1:500
10m
0
20m
30m
40m
50m
1:1000
0
100m
50m
1:20
0
0.5m
1m
1.5m
2m
0
1:25
0.5m
1m
1.5m
1:33
1/3
2.5m
2m
0
1m
2m
3m
0
1:50
1m
2m
3m
4m
5m
CAD FILE NAME: P:0CAD000SPEM**
MODEL UPDATED:
DWG. FILE UPDATED:
MANUAL CHANGES MADE: YES NO YES NO YES NO
PROJECT MANAGER
ENGINEERING MANAGER
AREA PROJECTENGINEER
REFERENCE DRAWINGS
SAFETY SHARE:
APPROVAL DATE
CONTRACT
NO.
SAFETY SHARE :
BA6CVA1.IGR
NOTICE: THIS DRAWING HAS NOT BEEN PUBLISHED AND IS THE SOLE
PROPERTY OF FLUOR AND IS LENT TO THE BORROWER FOR THEIR
CONFIDENTIAL USE ONLY, AND IN CONSIDERATION OF THE LOAN OF THIS
DRAWING, THE BORROWER PROMISES AND AGREES TO RETURN IT UPON
REQUEST AND AGREES THAT IT WILL NOT BE REPRODUCED, COPIED LENT
OR OTHERWISE DISPOSED OF DIRECTLY OR INDIRECTLY, NOR USED FOR
ANY OTHER PURPOSE OTHER THAN WHICH IT IS FURNISHED.
NONE
Apr 2011
240K-C2-
CLOSED LOOP CWS
HEADER
2978 3200-25J-083
3220-WF-1231-C1A-2"-N
3220-WF-1230-C1A-2"-N
3220-WF-1232-C1A-4"-N
3220-AP-1073-C1A-2"-N
3220-AP-1035-C1A-2"-N
3220-AP-1036-C1A-2"-N
3220-AP-1037-C1A-2"-N
3220-AP-1038-C1A-2"-N
3220-AP-1039-C1A-2"-N
3220-AP-1040-C1A-2"-N
COLLECTOR, C2-3220-DC-132
COLLECTOR, C2-3220-DC-131
COLLECTOR, C2-3220-DC-130
COLLECTOR, C2-3220-DC-067
COLLECTOR, C2-3220-DC-066
COLLECTOR, C2-3220-DC-065
3220-AP-1055-C1A-2"-N
3220-AP-1054-C1A-2"-N
3220-AP-1053-C1A-2"-N
3220-AP-1084-C1A-2"-N
3220-AP-1087-C1A-2"-N
3220-AP-1086-C1A-2"-N
3220-AP-1085-C1A-2"-N
3220-AP-1047-C1A-2"-N
PLANT AIR
SECONDARY CRUSHER
SURGE BIN DUST
3767 3200-25J-038
PLANT AIR
SECONDARY CRUSHER
SURGE BIN DUST
3771 3200-25J-039
COLLECTOR, C2-3220-DC-134
COLLECTOR, C2-3220-DC-136
3220-AP- -C1A-2"-N
3220-AP- -C1A-2"-N
VENDOR
3220-WF-1229-C1A-4"-N
3220-WF-1233-C1A-4"-N
3220-AP-1031-C1A-4"-N
3220-WF-1232-C1A-4"-N
3200-WF-1181-C1A-4"-N
3220-AP-1029-C1G-3"-N
PLANT AIR
C.O. SURGE BIN DUST
COLLECTOR,
1805 3200-25J-011
PLANT AIR
C.O. SURGE BIN DUST
COLLECTOR,
1972 3200-25J-012
PLANT AIR
C.O. SURGE BIN DUST
COLLECTOR,
1986 3200-25J-013
PLANT AIR
C.O. SURGE BIN DUST
COLLECTOR,
1991 3200-25J-014
PLANT AIR
C.O. SURGE BIN DUST
COLLECTOR,
2007 3200-25J-015
PLANT AIR
C.O. SURGE BIN DUST
COLLECTOR,
2018 3200-25J-016
PLANT AIR
COARSE ORE RECLAIM DUST
COLLECTORS
2940
3200-25J-007
3220-AP- -C1A-2"-N
3220-AP- -C1A-2"-N
C2-3240-DC-061/062
C2-3240-DC-063/064
C2-3240-DC-241/242
C2-3240-DC-243/244
C2-3240-DC-097/098
C2-3240-DC-099/100
T3
T3
AFD
3240
01906
PI L, P2
3240
01905
FI
M
M
3240
01904
PIT
3240
01906
PIT
3240
01901
FIT
3240
01903
FIT
3240
01985
HS
M
3240
01902
LIT
3240
01901
FIC
3240
01905
FIT
3240
01985
II
3240
01902
LE
3240
01984
II
3240
01984
HS
3240
01985
XA
3240
01904
PI
3240
01903
FI
3240
01902
LIC
3240
01984
XA
SUMP CONTENTS
TERTIARY CRUSHER
COOLING WATER RETURN
3672 3200-25J-079
PROCESS WATER
2092 3900-25J-014
SUMP CONTENTS
COARSE SCREENING AREA
SUMP PUMP EAST,
3297 3200-25J-024
SUMP CONTENTS
COARSE SCREENING AREA
SUMP PUMP WEST,
3296 3200-25J-023
SUMP CONTENTS
CYCLONE FEED SUMPS,
C2-3320-BX-101 TO 601
3250 3300-25J-036
GLAND WATER
DISTRIBUTION
3251 3900-25J-023
PUMPS, C2-3230-PP-029/059
C2-3240-PP-022
AFD
L, P2
LL, P1 L, P2
FAULT
L, P2
LL, P1
FAULT
J/SP
J/SP
C2-3240-PP-021
AG
KM
LT
ISSUED FOR CLIENT REVIEW
23-Dec-11
B
NOT USED
A
12/23/2011
K.MUNDY
A. GUNSON
T. OH
L. TAMELIN
1/3/2012
11:16:58
AM
WBS: 3240
B
PIPING AND INSTRUMENTATION DIAGRAM
SCREENING BUILDING
3200-25J-019
COARSE ORE SCREENING EFFLUENT
ES
3240-SL-1003-C1B-10"-N
3240-WG-1065-C1A-2"-N
3240-SL-1008-C1B-6"-N
3240-SL-1790-C1B-10"-N
ES
3"x2"
C2-3240-PP-024
3"x2"
C2-3240-BX-023
3240
01901
FE
+
3240
01901
FV
+
3240
01903
FE
+
3"x2"
3240-SL-1007-C1B-6"-N
C2-3240-PP-023
2"x1-1/4"
ES
3"x2"
ES
SIZE:
MATERIAL:
MOTOR:
C2-3240-PP-023
COARSE SCREEN EFFLUENT PUMP NO. 1
3240
01905
FE
+
SIZE:
MATERIAL:
MOTOR:
C2-3240-PP-024
COARSE SCREEN EFFLUENT PUMP NO. 2
SIZE: 25 m3
MATERIAL:
CAPACITY:
TRIM:3240-SL-1009-C1B-N
C2-3240-BX-023
COARSE SCREEN EFFLUENT PUMPBOX NO. 1
2"x1-1/4"
3240-SL-1005-C1B-10"-N
3240-WG-1032-C1A-2"-N
3240-WR-1335-C1A-3"-N
3240-SL-1004-C1B-10"-N
3240-SL-1006-C1B-10"-N
D
4
F
B
A
3
2
1 5 6 8
E
7
C
REV.
APPROVED
CHK.
DES.
REV. DATE REVISION DESCRIPTION
CLIENT
LEAD ENGINEER
SCALE DRAWING NUMBER
CHECK DESIGN CHECK DRAWING
DESIGNED BY DRAWN BY
APPROVAL DATE
APPROVAL DATE
APPROVED
CHK.
DES.
REV. DATE REVISION DESCRIPTION REFERENCE DRAWING No.
1:100
0
1:200
5m
10m
0
5m
10m
15m
20m
1:500
10m
0
20m
30m
40m
50m
1:1000
0
100m
50m
1:20
0
0.5m
1m
1.5m
2m
0
1:25
0.5m
1m
1.5m
1:33
1/3
2.5m
2m
0
1m
2m
3m
0
1:50
1m
2m
3m
4m
5m
CAD FILE NAME: P:0CAD000SPEM**
MODEL UPDATED:
DWG. FILE UPDATED:
MANUAL CHANGES MADE: YES NO YES NO YES NO
PROJECT MANAGER
ENGINEERING MANAGER
AREA PROJECTENGINEER
REFERENCE DRAWINGS
SAFETY SHARE:
APPROVAL DATE
CONTRACT
NO.
SAFETY SHARE :
BA6CVA1.IGR
NOTICE: THIS DRAWING HAS NOT BEEN PUBLISHED AND IS THE SOLE
PROPERTY OF FLUOR AND IS LENT TO THE BORROWER FOR THEIR
CONFIDENTIAL USE ONLY, AND IN CONSIDERATION OF THE LOAN OF THIS
DRAWING, THE BORROWER PROMISES AND AGREES TO RETURN IT UPON
REQUEST AND AGREES THAT IT WILL NOT BE REPRODUCED, COPIED LENT
OR OTHERWISE DISPOSED OF DIRECTLY OR INDIRECTLY, NOR USED FOR
ANY OTHER PURPOSE OTHER THAN WHICH IT IS FURNISHED.
NONE
Apr 2011
240K-C2-
M
3240
02082
HS
3240
02083
XA
3240
02083
HS
ST/SP
3240
02083
II
3240
02082
II
3240
02082
XA
DUST
C2-3240-ST-055
2093 3200-25J-011
FAULT
ST/SP
FAULT
C2-3240-FA-231
TO ATMOSPHERE
AG
KM
LT
ISSUED FOR CLIENT REVIEW
23-Dec-11
B
RP
ISSUED FOR COMBINED REVIEW
23-Jun-11
A
12/23/2011
K.MUNDY
A. GUNSON
T. OH
L.TAMELIN
1/3/2012
1:18:25
PM
WBS: 3240
B
PIPING AND INSTRUMENTATION DIAGRAM
SCREENING BUILDING
3200-25J-020
COARSE ORE SCREEN AREA DUST CONTROL
SIZE:
MOTOR:
C2-3240-ZV-231
COARSE SCREEN DUST COLLECTOR RO. VALVE NO. 1
C2-3240-DC-231
D
4
F
B
A
3
2
1 5 6 8
E
7
C
REV.
APPROVED
CHK.
DES.
REV. DATE REVISION DESCRIPTION
CLIENT
LEAD ENGINEER
SCALE DRAWING NUMBER
CHECK DESIGN CHECK DRAWING
DESIGNED BY DRAWN BY
APPROVAL DATE
APPROVAL DATE
APPROVED
CHK.
DES.
REV. DATE REVISION DESCRIPTION REFERENCE DRAWING No.
1:100
0
1:200
5m
10m
0
5m
10m
15m
20m
1:500
10m
0
20m
30m
40m
50m
1:1000
0
100m
50m
1:20
0
0.5m
1m
1.5m
2m
0
1:25
0.5m
1m
1.5m
1:33
1/3
2.5m
2m
0
1m
2m
3m
0
1:50
1m
2m
3m
4m
5m
CAD FILE NAME: P:0CAD000SPEM**
MODEL UPDATED:
DWG. FILE UPDATED:
MANUAL CHANGES MADE: YES NO YES NO YES NO
PROJECT MANAGER
ENGINEERING MANAGER
AREA PROJECTENGINEER
REFERENCE DRAWINGS
SAFETY SHARE:
APPROVAL DATE
CONTRACT
NO.
SAFETY SHARE :
BA6CVA1.IGR
NOTICE: THIS DRAWING HAS NOT BEEN PUBLISHED AND IS THE SOLE
PROPERTY OF FLUOR AND IS LENT TO THE BORROWER FOR THEIR
CONFIDENTIAL USE ONLY, AND IN CONSIDERATION OF THE LOAN OF THIS
DRAWING, THE BORROWER PROMISES AND AGREES TO RETURN IT UPON
REQUEST AND AGREES THAT IT WILL NOT BE REPRODUCED, COPIED LENT
OR OTHERWISE DISPOSED OF DIRECTLY OR INDIRECTLY, NOR USED FOR
ANY OTHER PURPOSE OTHER THAN WHICH IT IS FURNISHED.
NONE
Apr 2011
240K-C2-
M
3240
02084
HS
3240
02085
XA
3240
02085
HS
ST/SP
3240
02085
II
3240
02084
II
3240
02084
XA
FAULT
ST/SP
FAULT
C2-3240-FA-232
TO ATMOSPHERE
C2-3240-DC-232
M
3240
02086
HS
3240
02087
XA
3240
02087
HS
ST/SP
3240
02087
II
3240
02086
II
3240
02086
XA
FAULT
ST/SP
FAULT
C2-3240-FA-233
TO ATMOSPHERE
C2-3240-DC-233
M
3240
02088
HS
3240
02089
XA
3240
02089
HS
ST/SP
3240
02089
II
3240
02088
II
3240
02088
XA
FAULT
ST/SP
FAULT
C2-3240-FA-234
TO ATMOSPHERE
C2-3240-DC-234
C2-3240-ZV-231 C2-3240-ZV-232 C2-3240-ZV-233 C2-3240-ZV-234
SIZE:
MOTOR:
C2-3240-ZV-232
COARSE SCREEN DUST COLLECTOR RO. VALVE NO. 2
SIZE:
MOTOR:
C2-3240-ZV-233
COARSE SCREEN DUST COLLECTOR RO. VALVE NO. 3
SIZE:
MOTOR:
C2-3240-ZV-234
COARSE SCREEN DUST COLLECTOR RO. VALVE NO. 4
SIZE:
MATERIAL:
MOTOR:
C2-3240-DC-232
COARSE SCREEN DUST COLLECTOR NO. 2
SIZE:
MATERIAL:
MOTOR:
C2-3240-DC-233
COARSE SCREEN DUST COLLECTOR NO. 3
SIZE:
MATERIAL:
MOTOR:
C2-3240-DC-234
COARSE SCREEN DUST COLLECTOR NO. 4
SIZE:
C2-3240-FA-232
COARSE SCREEN DUST COLLECTOR FAN NO. 2
SIZE:
C2-3240-FA-233
COARSE SCREEN DUST COLLECTOR FAN NO. 3
SIZE:
C2-3240-FA-234
COARSE SCREEN DUST COLLECTOR FAN NO. 4
M
3240
02092
HS
3240
02093
XA
3240
02093
HS
ST/SP
3240
02093
II
3240
02092
II
3240
02092
XA
FAULT
ST/SP
FAULT
C2-3240-FA-042
TO ATMOSPHERE
SIZE:
MOTOR:
C2-3240-ZV-042
COARSE SCREEN DUST COLLECTOR RO. VALVE NO. 5
C2-3240-DC-042
M
3240
02094
HS
3240
02095
XA
3240
02095
HS
ST/SP
3240
02095
II
3240
02094
II
3240
02094
XA
FAULT
ST/SP
FAULT
C2-3240-FA-043
TO ATMOSPHERE
C2-3240-DC-043
M
3240
02096
HS
3240
02097
XA
3240
02097
HS
ST/SP
3240
02097
II
3240
02096
II
3240
02096
XA
FAULT
ST/SP
FAULT
C2-3240-FA-044
TO ATMOSPHERE
C2-3240-DC-044
M
3240
02098
HS
3240
02099
XA
3240
02099
HS
ST/SP
3240
02099
II
3240
02098
II
3240
02098
XA
FAULT
ST/SP
FAULT
C2-3240-FA-045
TO ATMOSPHERE
C2-3240-DC-045
C2-3240-ZV-042 C2-3240-ZV-043 C2-3240-ZV-044 C2-3240-ZV-045
SIZE:
MOTOR:
C2-3240-ZV-043
COARSE SCREEN DUST COLLECTOR RO. VALVE NO. 6
SIZE:
MOTOR:
C2-3240-ZV-044
COARSE SCREEN DUST COLLECTOR RO. VALVE NO. 7
SIZE:
MOTOR:
C2-3240-ZV-045
COARSE SCREEN DUST COLLECTOR RO. VALVE NO. 8
SIZE:
MATERIAL:
MOTOR:
C2-3240-DC-043
COARSE SCREEN DUST COLLECTOR NO. 6
SIZE:
MATERIAL:
MOTOR:
C2-3240-DC-044
COARSE SCREEN DUST COLLECTOR NO. 7
SIZE:
MATERIAL:
MOTOR:
C2-3240-DC-045
COARSE SCREEN DUST COLLECTOR NO. 8
SIZE:
C2-3240-FA-043
COARSE SCREEN DUST COLLECTOR FAN NO. 6
SIZE:
C2-3240-FA-044
COARSE SCREEN DUST COLLECTOR FAN NO. 7
SIZE:
C2-3240-FA-045
COARSE SCREEN DUST COLLECTOR FAN NO. 8
SIZE:
C2-3240-FA-231
COARSE SCREEN DUST COLLECTOR FAN NO. 1
SIZE:
MATERIAL:
MOTOR:
C2-3240-DC-231
COARSE SCREEN DUST COLLECTOR NO. 1
SIZE:
MATERIAL:
MOTOR:
C2-3240-DC-042
COARSE SCREEN DUST COLLECTOR NO. 5
SIZE:
C2-3240-FA-042
COARSE SCREEN DUST COLLECTOR FAN NO. 5
TERTIARY CRUSHER SURGE
BIN FEED CONVEYOR NO. 1,
3434 3200-25J-025
TERTIARY CRUSHER SURGE
BIN FEED CONVEYOR NO. 1,
3435 3200-25J-025
TERTIARY CRUSHER SURGE
BIN FEED CONVEYOR NO. 1,
3436 3200-25J-025
TERTIARY CRUSHER SURGE
BIN FEED CONVEYOR NO. 1,
3437 3200-25J-025
TERTIARY CRUSHER SURGE
BIN FEED CONVEYOR NO. 2,
3438 3200-25J-026
TERTIARY CRUSHER SURGE
BIN FEED CONVEYOR NO. 2,
3439 3200-25J-026
TERTIARY CRUSHER SURGE
BIN FEED CONVEYOR NO. 2,
3440 3200-25J-026
TERTIARY CRUSHER SURGE
BIN FEED CONVEYOR NO. 2,
3441 3200-25J-026
C2-3240-CV-031
C2-3240-CV-031
C2-3240-CV-031
C2-3240-CV-031
C2-3240-CV-041
C2-3240-CV-041
C2-3240-CV-041
C2-3240-CV-041
DUST
C2-3240-ST-056
2094 3200-25J-012
DUST
C2-3240-ST-057
2095 3200-25J-013
DUST
C2-3240-ST-058
2096 3200-25J-014
DUST
C2-3240-ST-091
3239 3200-25J-015
DUST
C2-3240-ST-092
2099 3200-25J-016
DUST
C2-3240-ST-093
3245 3200-25J-021
DUST
C2-3240-ST-094
2101 3200-25J-022
DUST
C2-3240-ST-061
4172 3200-25J-011
DUST
C2-3240-ST-062
4173 3200-25J-012
DUST
C2-3240-ST-063
3429 3200-25J-013
DUST
C2-3240-ST-064
3430 3200-25J-014
DUST
C2-3240-ST-115
3991 3200-25J-015
DUST
C2-3240-ST-116
3993 3200-25J-016
DUST
C2-3240-ST-117
3995 3200-25J-021
DUST
C2-3240-ST-118
3997 3200-25J-022
DUST
C2-3240-ST-071
3982 3200-25J-011
DUST
C2-3240-ST-072
3984 3200-25J-012
DUST
C2-3240-ST-073
3987 3200-25J-013
DUST
C2-3240-ST-074
3989 3200-25J-014
DUST
C2-3240-ST-111
3992 3200-25J-015
DUST
C2-3240-ST-112
3994 3200-25J-016
DUST
C2-3240-ST-113
3996 3200-25J-021
DUST
C2-3240-ST-114
3998 3200-25J-022
DUST
DUST CONTROL POINT
C2-3230-SV-028
4177 3200-25J-076
AP AP AP
AP
AP
AP
AP
AP
VENDOR VENDOR VENDOR VENDOR
VENDOR VENDOR VENDOR VENDOR
PLANT AIR
DISTRIBUTION
2987 3200-25J-017
C2-3240-DC-231
3220-AP-16741-C1A-2"-N
C2-3240-DC-232
C2-3240-DC-233
C2-3240-DC-234
C2-3240-DC-042
C2-3240-DC-043
C2-3240-DC-044
C2-3240-DC-045
NOTE 1
NOTES:
1. PLANT AIR TO DISTRIBUTE TO DUST COLLECTORS DETAILS TBD.
3240
02001
PDAH 3240
02002
PDAH
3240
02003
PDAH
3240
02004
PDAH
3240
02011
PDAH
3240
02012
PDAH
3240
02013
PDAH
3240
02014
PDAH
DUST
DUST COLLECTOR POINTS
C2-3230-ST-076
1967 3200-25J-074
DUST
DUST CONTROL POINT
C2-3230-CV-018
3257 3200-25J-075
DUST
C2-3230-ST-075
1361 3200-25J-073
D
4
F
B
A
3
2
1 5 6 8
E
7
C
REV.
APPROVED
CHK.
DES.
REV. DATE REVISION DESCRIPTION
CLIENT
LEAD ENGINEER
SCALE DRAWING NUMBER
CHECK DESIGN CHECK DRAWING
DESIGNED BY DRAWN BY
APPROVAL DATE
APPROVAL DATE
APPROVED
CHK.
DES.
REV. DATE REVISION DESCRIPTION REFERENCE DRAWING No.
1:100
0
1:200
5m
10m
0
5m
10m
15m
20m
1:500
10m
0
20m
30m
40m
50m
1:1000
0
100m
50m
1:20
0
0.5m
1m
1.5m
2m
0
1:25
0.5m
1m
1.5m
1:33
1/3
2.5m
2m
0
1m
2m
3m
0
1:50
1m
2m
3m
4m
5m
CAD FILE NAME: P:0CAD000SPEM**
MODEL UPDATED:
DWG. FILE UPDATED:
MANUAL CHANGES MADE: YES NO YES NO YES NO
PROJECT MANAGER
ENGINEERING MANAGER
AREA PROJECTENGINEER
REFERENCE DRAWINGS
SAFETY SHARE:
APPROVAL DATE
CONTRACT
NO.
SAFETY SHARE :
BA6CVA1.IGR
NOTICE: THIS DRAWING HAS NOT BEEN PUBLISHED AND IS THE SOLE
PROPERTY OF FLUOR AND IS LENT TO THE BORROWER FOR THEIR
CONFIDENTIAL USE ONLY, AND IN CONSIDERATION OF THE LOAN OF THIS
DRAWING, THE BORROWER PROMISES AND AGREES TO RETURN IT UPON
REQUEST AND AGREES THAT IT WILL NOT BE REPRODUCED, COPIED LENT
OR OTHERWISE DISPOSED OF DIRECTLY OR INDIRECTLY, NOR USED FOR
ANY OTHER PURPOSE OTHER THAN WHICH IT IS FURNISHED.
NONE
Apr 2011
240K-C2-
M
3240
02181
II
3240
02116
LI
3240
02105
ZSH
3240
02108
XA
P1
3240
02103
SDI
3240
02118
VI
A-D
3240
02104
ZSHH
3240
02108 A
XS
3240
02118
VT
A-D
3240
02104
ZSH
3240
02103 B
SI
3240
02118
VE
3240
02116 A
LI
3240
02115 A
LAH
3240
02116
LT
3240
02116
LE
3240
02182
HS
3240
02107 A
TI
3240
02107 A
TE
HH, P1
H, P2
3240
02107 B
TI
3240
02110
WI
3240
02115 A
LSH
3240
02106 A
TI HH, P1
H, P2
3240
02106 A
TE
3240
02110
WIT
3240
02182
XA
3240
02104
ZAHH 3240
02110
WE
LHS
3240
02182
II
3240
02110
SE
3240
02107 B
TE
HH, P1
H, P2
3240
02106 B
TI HH, P1
H, P2
3240
02106 B
TE
3240
02117
LAL
3240
02119
LAH
P1
3240
02105
ZAHH
LHS, P1
3240
02117
LSL
3240
02103 B
ST
3240
02181
HS
3240
02101
HSA
3240
02119
LSH
3240
02103 B
SE
3240
02102
HSA
3240
02101
HSS
3240
02181
XA
3240
02105
ZSHH
3240
02102
HSS
RHS
P1
FAULT
J/SP
RHS, P1
EXPERT
SYSTEM
RHS
A,B
P1
ST/SP
A,B H, P1
FAULT
DUCTING
BIN CONTINUED ON
P&ID 3200-25J-022
C2-3240-ST-113
C2-3240-SC-023
C2-3240-ST-093
C2-3240-SL-033
C2-3240-ST-083
3220-AP1049-C1A-2"-N
C2-3240-DC-197
C2-3240-FA-197
C2-3240-FE-028
C2-3240-BN-017
H, P2
L, P2
LHS
RHS
A,B
P1
P1
LHS
A,B
A,B
A,B
HH, P1
H, P2
SIZE:
C2-3240-ST-093
C.O. SCREEN FEED CHUTE
SIZE:
C2-3240-ST-113
C.O. SCREEN NO.7 U/S CHUTE
TO ATMOSPHERE
SIZE:
C2-3240-ST-083
C.O. SURGE BIN NO.7 FEEDER SKIRT
SIZE:
C2-3240-SL-033
C.O. SCREEN FEEDER NO.7 VOLUMETRIC BELT SCALE
SIZE:
C2-3240-DC-197
C.O SURGE BIN DUST COLLECTOR (DRY)
SIZE:650t LIVE
C2-3240-BN-017
C.O. SURGE BIN NO.7
3240
02115 A
LE
3240
02115 B
LE
3240
02115 B
LSH
3240
02115 B
LAH
P1
3240
02103 A
SE
3240
02103 A
ST
3240
02103 A
SI
3240
02108 B
XA
TEAR
C2-3240-DC-042
C2-3240-CV-025
COARSE SCREEN O/S
COARSE SCREEN O/S
CONVEYOR NO. 2,
1944 3200-25J-024
COARSE SCREEN U/S
TERTIARY CRUSHER SURGE
BIN FEED CONVEYOR NO. 2,
1910 3200-25J-026
C2-3240-CV-041
PLANT AIR
2031 3200-25J-017
BIN CONTINUED ON
P&ID 3200-25J-016
T1
V
V
ES
V
V
V
V
ES
ES
V
ES
ES
V
V
AG
KM
LT
ISSUED FOR CLIENT REVIEW
23-Dec-11
B
RP
ISSUED FOR COMBINED REVIEW
23-Jun-11
A
12/23/2011
K.MUNDY
A. GUNSON
T. OH
L. TAMELIN
1/3/2012
11:21:36
AM
WBS: 3240
B
PIPING AND INSTRUMENTATION DIAGRAM
SCREENING BUILDING
3200-25J-021
COARSE ORE FEEDER AND SCREEN NO. 7
RHS LHS
A,B
RHS LHS
SIZE:
C2-3240-ST-117
COARSE SCREEN NO.7 O/S CHUTE
C2-3240-ST-117
A,B
A,B
SEC. CRUSHER PRODUCT
SEC. CRUSHER DISCHARGE
CONV. NO. 2, C2-3220-CV-026
3240 3200-25J-016
SEC. CRUSHER PRODUCT
C2-3240-BN-018
3244 3200-25J-022
DUST
COARSE SCREEN DUST
COLLECTOR NO. 5,
3245 3200-25J-020
SIZE:
MOTOR:
C2-3240-FA-197
C.O. SURGE BIN DUST COLLECTOR FAN
SIZE:
MOTOR:
C2-3240-SC-023
C.O. SCREEN NO. 7
SIZE:
MOTOR:
C2-3240-FE-028
C.O. SCREEN FEEDER NO. 7
V V
RHS
LHS
V
V
ES
V
V
V
V
V
V 3240
02105
ZAH
3240
02104
ZAH
P2
P2
V
V
M
3240
02183
II
3240
02183
HS
3240
02183
XA
ST/SP
FAULT
C2-3240-DC-198
C2-3240-FA-198
TO ATMOSPHERE
SIZE:
C2-3240-DC-198
C.O. SURGE BIN DUST COLLECTOR (DRY)
SIZE:
MOTOR:
C2-3240-FA-198
C.O. SURGE BIN DUST COLLECTOR FAN
3240-AP-1285-C1A-2"-N
VENDOR
VENDOR
ES
DUCTING
DUCTING
CONVEYOR
CONVEYOR
FEEDER AFD DRIVE
3240
32181 H
TE
BRG
FRONT
3240
32181 G
TE
BRG
REAR
3240
32181
HS
3240
32181
XA
FAULT
3240
32181
II
VENDOR
A TO ?
J/SP
3240
02121
XA
+
3240
32181 H
TI
BRG
FRONT
H, P2
HH, P1
3240
32181 G
TI
BRG
REAR
H, P2
HH, P1
DUST
DUST COLLECTOR,
C2-3240-DC-044
3995 3200-25J-020
DUST
DUST COLLECTOR,
C2-3240-DC-043
3996 3200-25J-020
ES
A-D
3240
02123
PDAH
3240
02122
PDAH
M
T1
TEAR
LHS
3240
02218
VE
3240
02202
HSS
RHS
3240
02202
HSA
RHS
A,B
3240
02218
VT
A-D
3240
02207 A
TI
3240
02206 A
TE
RHS
3240
02219
LAH
P1
3240
02215 A
LAH P1
3240
02215 B
LSH
3240
02203 A
ST
3240
02281
II
3240
02205
ZAHH
LHS, P1
3240
02215 B
LE
3240
02206 B
TI HH, P1
H, P2
3240
02204
ZS
3240
02210
SE
3240
02282
HS
3240
02205
ZSHH
RHS
3240
02216
LE
3240
02201
HSA
3240
02219
LSH
3240
02206 A
TI HH, P1
H, P2
3240
02215 A
LE
3240
02208 B
XA
3240
02204
ZS
3240
02216
LT
3240
02206 B
TE
3240
02203 A
SE
3240
02216
LI
3240
02208
XA
P1
3240
02204
ZAHH
3240
02205
ZSH 3240
02201
HSS
3240
02217
LAL
3240
02282
XA
3240
02282
II
3240
02203 B
SE
3240
02210
WIT
3240
02216 A
LI
3240
02281
HS
3240
02203 A
SI
3240
02217
LSL
3240
02208 A
XS
3240
02203 B
SI
3240
02281
XA
3240
02203 B
ST
3240
02215 B
LAH
3240
02210
WE
LHS
3240
02218
VI
A-D
3240
02203
SDI
3240
02207 B
TI HH, P1
H, P2
3240
02207 B
TE
3240
02210
WI
3240
02207 A
TE
HH, P1
H, P2
3240
02215 A
LSH
DUST
COARSE SCREEN DUST
COLLECTOR NO. 5,
2101 3200-25J-020
COARSE SCREEN O/S
COARSE SCREEN O/S
CONVEYOR NO. 2,
1945 3200-25J-024
COARSE SCREEN U/S
TERTIARY CRUSHER SURGE
BIN FEED CONVEYOR NO. 2,
1912 3200-25J-026
SEC. CRUSHER PRODUCT
SEC. CRUSHER DISCHARGE
CONV. NO. 2, C2-3220-CV-026
3244 3200-25J-021
PLANT AIR
2035 3200-25J-017
LHS
A,B
RHS
LHS
HH, P1
H, P2
P1
H, P1
P1
DUCTING
C2-3240-DC-042
LHS
A,B
H, P2
L, P2
ST/SP
FAULT
EXPERT
SYSTEM
A,B
A,B
BIN CONTINUED ON
P&ID 3200-25J-021
A,B
C2-3240-CV-025
P1
A,B
A,B
C2-3240-CV-041
RHS, P1
A,B
FAULT
P1
J/SP
SIZE:650t LIVE
C2-3240-BN-018
C.O. SURGE BIN NO. 8
C2-3240-FA-199
SIZE:
MOTOR:
C2-3240-SC-024
C.O. SCREEN NO. 8
SIZE:
MOTOR:
C2-3240-FE-029
C.O. SCREEN FEEDER NO. 8
SIZE:
C2-3240-ST-118
COARSE SCREEN NO.8 O/S CHUTE
SIZE:
C2-3240-SL-034
C.O. SCREEN FEEDER NO.8 VOLUMETRIC BELT SCALE
3220-AP-1048-C1A-2"-N
C2-3240-ST-118
SIZE:
MOTOR:
C2-3240-FA-199
C.O. SURGE BIN DUST COLLECTOR NO.1 FAN
C2-3240-ST-084
C2-3240-DC-199
C2-3240-FE-029
SIZE:
C2-3240-DC-199
C.O. SURGE BIN DUST COLLECTOR NO.1
C2-3240-BN-018
C2-3240-ST-094
AG
KM
LT
ISSUED FOR CLIENT REVIEW
23-Dec-11
B
RP
ISSUED FOR COMBINED REVIEW
23-Jun-11
A
12/23/2011
K.MUNDY
A. GUNSON
T. OH
L. TAMELIN
1/3/2012
11:25:03
AM
WBS: 3240
B
PIPING AND INSTRUMENTATION DIAGRAM
SCREENING BUILDING
3200-25J-022
COARSE ORE FEEDER AND SCREEN NO. 8
SIZE:
C2-3240-ST-084
C.O. SURGE BIN NO.8 FEEDER SKIRT
C2-3240-ST-114
SIZE:
C2-3240-ST-094
C.O. SCREEN NO.8 FEED CHUTE
C2-3240-SC-024
SIZE:
C2-3240-ST-114
C.O. SCREEN NO.8 U/S CHUTE
C2-3240-SL-034
TO ATMOSPHERE
V
V
V
V
ES
V
ES
V
V
ES
V
V
ES
ES
D
4
F
B
A
3
2
1 5 6 8
E
7
C
REV.
APPROVED
CHK.
DES.
REV. DATE REVISION DESCRIPTION
CLIENT
LEAD ENGINEER
SCALE DRAWING NUMBER
CHECK DESIGN CHECK DRAWING
DESIGNED BY DRAWN BY
APPROVAL DATE
APPROVAL DATE
APPROVED
CHK.
DES.
REV. DATE REVISION DESCRIPTION REFERENCE DRAWING No.
1:100
0
1:200
5m
10m
0
5m
10m
15m
20m
1:500
10m
0
20m
30m
40m
50m
1:1000
0
100m
50m
1:20
0
0.5m
1m
1.5m
2m
0
1:25
0.5m
1m
1.5m
1:33
1/3
2.5m
2m
0
1m
2m
3m
0
1:50
1m
2m
3m
4m
5m
CAD FILE NAME: P:0CAD000SPEM**
MODEL UPDATED:
DWG. FILE UPDATED:
MANUAL CHANGES MADE: YES NO YES NO YES NO
PROJECT MANAGER
ENGINEERING MANAGER
AREA PROJECTENGINEER
REFERENCE DRAWINGS
SAFETY SHARE:
APPROVAL DATE
CONTRACT
NO.
SAFETY SHARE :
BA6CVA1.IGR
NOTICE: THIS DRAWING HAS NOT BEEN PUBLISHED AND IS THE SOLE
PROPERTY OF FLUOR AND IS LENT TO THE BORROWER FOR THEIR
CONFIDENTIAL USE ONLY, AND IN CONSIDERATION OF THE LOAN OF THIS
DRAWING, THE BORROWER PROMISES AND AGREES TO RETURN IT UPON
REQUEST AND AGREES THAT IT WILL NOT BE REPRODUCED, COPIED LENT
OR OTHERWISE DISPOSED OF DIRECTLY OR INDIRECTLY, NOR USED FOR
ANY OTHER PURPOSE OTHER THAN WHICH IT IS FURNISHED.
NONE
Apr 2011
240K-C2-
V V
V
V RHS
LHS
ES
V
V
V
V
V
V
3240
02205
ZAH
3240
02204
ZAH
P2
P2
V
V
M
3240
02283
II
3240
02283
HS
3240
02283
XA
ST/SP
FAULT
C2-3240-FA-200
C2-3240-DC-200
TO ATMOSPHERE
SIZE:
C2-3240-DC-200
C.O. SURGE BIN DUST COLLECTOR NO.2
SIZE:
MOTOR:
C2-3240-FA-200
C.O. SURGE BIN DUST COLLECTOR NO.2 FAN
3240-AP-1286-C1A-2"-N
VENDOR
VENDOR
ES
FEEDER AFD DRIVE
3240
32281 H
TE
BRG
FRONT
3240
32281 G
TE
BRG
REAR
3240
32281
HS
3240
32281
XA
FAULT
3240
32281
II
VENDOR
A TO ?
J/SP
3240
02221
XA
+
3240
32281 H
TI
BRG
FRONT
H, P2
HH, P1
3240
32281 G
TI
BRG
REAR
H, P2
HH, P1
DUCTING
DUCTING
CONVEYOR
CONVEYOR
ES
DUST
DUST COLLECTOR,
C2-3240-DC-043
3997 3200-25J-020
DUST
DUST COLLECTOR,
C2-3240-DC-044
3998 3200-25J-020
A-D
3240
02222
PDAH
3240
02223
PDAH
T5
B
GEAR
REDUCER
A,B
D, E
J-M
A-L
A-L
A-L A-L
A
F
L
G
J
D
T8
T1
3240
02305
ZSH
3240
02304
ZSH
3240
02305
ZAHH
3240
02304
ZAHH P1
3240
02331
VI
3240
02332
LE
3240
02332
LSL
3240
02333
TE
3240
02332
LA
3240
02333
TI
3240
02322
ZSHH
3240
02331
VT
3240
02331
VE
3240
HS
3240
H
TI
BRG
FRONT
H, P2
HH, P1
3240
G
TI
3240
H
TE
3240
G
TE
3240
XA
FAULT
3240
II
3240
02310
SE
3240
02322 A
ZAH
P1
P1
3240
02322
ZSH
3240
02384
XA
3240
02312 D
ZS
3240
02315 A
LAH
P1
3240
02382
XA
3240
02304
ZAH
P2
D, E
LHS
3240
02321
SAL P1
3240
02381
XA
3240
02304
ZAHH
3240
02305
ZAHH
3240
02315 A
LE
3240
02310
WI L, P2
3240
02313
XE
B
3240
02313
XE
A
3240
02313
XIH
H, P2 3240
02313 B
XY
3240
02313 A
XY
3240
02312 C
ZS
3240
02308
XA
3240
02301
HSA
P1
3240
02384
II
3240
02321
SE
3240
02301
HSA
LHS
J-M
3240
02316
LIT
3240
02312 C
ZA
3240
02302
HSS
RHS
3240
02381
II
3240
02303 B
ST
3240
02303
SDI
3240
02310
WIT
3240
02306
TI
3240
02305
ZSH
RHS
3240
02303 A
ST
3240
02304
ZSHH
3240
02301
HSS
3240
02316
LI
3240
02306
TE
3240
02302
HSS
RHS
3240
02316
LE
3240
02315 A
LSH
3240
02304
ZAH
3240
02315 B
LE
3240
02303 A
SE
3240
02322 B
ZAHH
3240
02382
II
3240
02315 B
LAH
P1
3240
02303 B
SE
3240
02312 B
ZS
3240
02312 A
ZS
3240
02312 A
ZA
3240
02312 B
ZA
3240
02323
NA
3240
02323
NS
3240
02308 B
XS
3240
02305
ZAH
RHS
A-C
3240
02302
HSA
P1 J-M
RHS
3240
02308 A
XS
3240
02305
ZAH
3240
02310
WE
3240
02303 A
SI
3240
02301
HSS
LHS
3240
02307
TE
3240
02384
HS
3240
02321
SSL
3240
02382
HS
3240
02302
HSA
3240
02312 D
ZA
OVER
TRAVEL
3240
02303 B
SI
3240
02305
ZSHH
3240
02305
ZSHH
3240
02381
HS
J/SP
3240
02315 B
LSH
3240
02304
ZSH
LHS
3240
02304
ZSHH
D, E LHS
RHS
3240
02307
TI
LHS
C.O. SCREEN O/S
C.O. SCREEN O/S,
C2-3240-SC-011
1365 3200-25J-011
C.O. SCREEN O/S
C.O. SCREEN O/S,
C2-3240-SC-012
1807 3200-25J-012
C.O. SCREEN AREA SUMP
COARSE SCREENING
EFFLUENT PUMPBOX NO 1
3296 3200-25J-019
C. O.SCREEN O/S
C.O. SCREEN O/S,
C2-3240-SC-014
1809 3200-25J-014
C.O. SCREEN O/S
C.O. SCREEN O/S,
C2-3240-SC-013
1808 3200-25J-013 C.O. SCREEN O/S
SECONDARY CRUSHER
SURGE BIN NO.1
1810 3200-25J-027
OVER
TRAVEL
H, P2
HH,P1 L, P2
H, P2
HH,P1
A-B
A-B
A-B
FAULT
J/SP
FAULT
FAULT
C2-3220-BN-021
C2-3220-BN-021
J/SP
BRG
REAR
H, P2
HH, P1
AFD
SAFETY
INTERLOCKS
BRG
REAR
A TO ?
BRG
FRONT
LHS
P1
P1 P1
H, P1
A-C
LHS
A TO N
P1
P1
A-C
LHS
RHS
LHS
A-H
P2
D,E
RHS
P2
J-M
H
P2
HYDRAULIC
RAIL CLAMP
A-H
NOTES:
1. IN INSTRUMENT NUMBERING SUFFIXES, LETTER "I" AND "O" ARE NOT USED.
A-B
J/SP
P2
P1
RHS
P1
C2-3240-BX-023
END
TRAVEL
P2
VENDOR
P1
NOTE 1
NOTE 1
C
NOTE 1
K
RHS
SENOR GUARD
E
NOTE 1
END
TRAVEL
LL, P1
H, P2
L, P2
P2
A-H
A-C
P2
P1
P1
A-H
RHS
LHS
TEAR
C2-3240-PP-021
T4
C2-3240-SL-005
C2-3240-MA-005
C2-3240-DV-011
V V
V
V
AG
KM
LT
ISSUED FOR CLIENT REVIEW
23-Dec-11
B
RP
ISSUED FOR COMBINED REVIEW
23-Jun-11
A
12/23/2011
K.MUNDY
A. GUNSON
T. OH
L. TAMELIN
1/3/2012
1:23:38
PM
WBS: 3240
B
PIPING AND INSTRUMENTATION DIAGRAM
SCREENING BUILDING
3200-25J-023
COARSE SCREENING O/S CONVEYOR NO. 1
C2-3240-ST-050
C2-3240-ZM-215
ES
V
C2-3240-MD-013
SIZE:
C2-3240-ST-050
CV-015 HEAD CHUTE
C2-3240-CV-015
C2-3240-ST-059
C2-3240-BN-005
3240
02311
XA
+
V
V
V ES
ES
V
V
V
SIZE:
C2-3240-MA-005
CV-015 SELF CLEANING MAGNET
V
SIZE: 1829 mm X 475 m L
MATERIAL:
MOTOR: 746.00 kW
C2-3240-CV-015
COARSE SCREEN O/S CONVEYOR NO. 1
SIZE:
MATERIAL:
CAPACITY:
TRIM:
C2-3240-BN-005
CV-015 TRAMP METAL BIN
3240-SL-1007-C1B-6"-N
SIZE:
C2-3240-ST-059
CV-015 TRAMP METAL CHUTE
ES
ES
SIZE:
MATERIAL:
MOTOR:
C2-3240-PP-021
COARSE SCREEN AREA SUMP PUMP NO.1
V V
V
SIZE:
C2-3240-SL-005
CV-015-2-IDLER BELT SCALE
V
ES
V
V
SIZE:
C2-3240-MD-013
CV-015 METAL DETECTOR
ES
C2-3240-ZE-006
ES
3240
XA
+
C2-3240-ZE-006
SENOR GUARD BELT RIP DETECTOR
V
C2-3240-DV-011
CV-015 SHUTTLE HEAD
C2-3240-ZM-215
HYDRAULIC RAIL CLAMP
D
4
F
B
A
3
2
1 5 6 8
E
7
C
REV.
APPROVED
CHK.
DES.
REV. DATE REVISION DESCRIPTION
CLIENT
LEAD ENGINEER
SCALE DRAWING NUMBER
CHECK DESIGN CHECK DRAWING
DESIGNED BY DRAWN BY
APPROVAL DATE
APPROVAL DATE
APPROVED
CHK.
DES.
REV. DATE REVISION DESCRIPTION REFERENCE DRAWING No.
1:100
0
1:200
5m
10m
0
5m
10m
15m
20m
1:500
10m
0
20m
30m
40m
50m
1:1000
0
100m
50m
1:20
0
0.5m
1m
1.5m
2m
0
1:25
0.5m
1m
1.5m
1:33
1/3
2.5m
2m
0
1m
2m
3m
0
1:50
1m
2m
3m
4m
5m
CAD FILE NAME: P:0CAD000SPEM**
MODEL UPDATED:
DWG. FILE UPDATED:
MANUAL CHANGES MADE: YES NO YES NO YES NO
PROJECT MANAGER
ENGINEERING MANAGER
AREA PROJECTENGINEER
REFERENCE DRAWINGS
SAFETY SHARE:
APPROVAL DATE
CONTRACT
NO.
SAFETY SHARE :
BA6CVA1.IGR
NOTICE: THIS DRAWING HAS NOT BEEN PUBLISHED AND IS THE SOLE
PROPERTY OF FLUOR AND IS LENT TO THE BORROWER FOR THEIR
CONFIDENTIAL USE ONLY, AND IN CONSIDERATION OF THE LOAN OF THIS
DRAWING, THE BORROWER PROMISES AND AGREES TO RETURN IT UPON
REQUEST AND AGREES THAT IT WILL NOT BE REPRODUCED, COPIED LENT
OR OTHERWISE DISPOSED OF DIRECTLY OR INDIRECTLY, NOR USED FOR
ANY OTHER PURPOSE OTHER THAN WHICH IT IS FURNISHED.
NONE
Apr 2011
240K-C2-
T1
T5
J-M
A-B
D, E
T8
3240
02404
ZSHH
3240
02410
SE
3240
02413
XE
A
3240
02408 A
XS
3240
02415 B
LAH
P1
3240
02412 A
ZS
3240
02413
XE
B
3240
02403 A
SI
3240
02402
HSA
P1 J-M
RHS
3240
02406
TE
3240
02422
ZAHH
3240
02421
SAL P1
3240
02422
ZSH
3240
02401
HSS
LHS
3240
02401
HSS
3240
02404
ZSHH
LHS
RHS D, E
3240
02405
ZSH
RHS
3240
02482
HS
3240
02423
NA
3240
02412 D
ZA
OVER
TRAVEL
3240
02405
ZSHH
3240
02423
NS
3240
02403 A
SE
3240
02413
XIH
H, P2
3240
02401
HSA
LHS
J-M
3240
02405
ZAH
RHS
A-C
3240
02305
ZAH
3240
02422
ZAH
P1
P1
3240
02416
LE
3240
02413 B
XY
3240
02484
II
3240
02413 A
XY
3240
02407
TE
3240
02402
HSS
RHS
3240
02412 B
ZS
3240
02421
SE
3240
02402
HSS
RHS
3240
02415 B
LE
3240
02408
XA
3240
02407
TI
LHS
3240
02405
ZSHH
3240
02412 B
ZA
3240
02401
HSA
P1
3240
02412 D
ZS
3240
02416
LIT
3240
02410
WE
3240
02415 A
LAH
P1
3240
02404
ZAHH
3240
02415 A
LSH
3240
02410
WIT
3240
02484
XA
3240
02402
HSA
3240
02305
ZAHH
3240
02406
TI
3240
02405
ZAHH
3240
02415 A
LE
3240
02304
ZAHH P1
3240
02403 A
ST
3240
02482
XA
3240
02416
LI
3240
02404
ZSH
LHS
3240
02304
ZAH
P2
D, E
LHS
3240
02408 B
XS
3240
02412 A
ZA
3240
02410
WI L, P2
3240
02404
ZSH
3240
02482
II
3240
02484
HS
3240
02412 C
ZS
3240
02404
ZAH
3240
02412 C
ZA
3240
02403
SDI
3240
02421
SSL
3240
02405
ZSH
3240
02415 B
LSH
A-B
C.O.SCREEN O/S
C.O.SCREEN O/S,
C2-3240-SC-023
1944 3200-25J-021 C.O.SCREEN O/S
SECONDARY CRUSHER
SURGE BIN
1941 3200-25J-033
C.O.SCREEN O/S
C.O.SCREEN O/S,
C2-3240-SC-022
1943 3200-25J-016
C.O.SCREEN AREA SUMP
COARSE SCREENING
PUMPBOX NO 1
3297 3200-25J-019
C.O.SCREEN O/S
C.O.SCREEN O/S,
C2-3240-SC-024
1945 3200-25J-022
C.O.SCREEN O/S
C.O.SCREEN O/S,
C2-3240-SC-021
1942 3200-25J-015
P1
J-M
P2
D,E
RHS
HYDRAULIC
RAIL CLAMP
RHS
LHS
J/SP
P2
OVER
TRAVEL
LL, P1
H, P2
L, P2
LHS
P1
P2
P1
P1
A-H
A-C
P2
RHS
P1
LHS
A-H
RHS
P1
P1
A-C
RHS
LHS
END
TRAVEL
SENSOR GUARD
P2
P1
P1
P1
TEAR
P2
C2-3240-BX-023
FAULT
LHS
A-H
A-H
A-C
H, P1
END
TRAVEL
J/SP
FAULT
C2-3220-BN-025
P2
C2-3240-SL-007
3240-SL-1008-C1B-6"-N
SIZE:
MATERIAL:
CAPACITY:
TRIM:
C2-3240-BN-006
CV-025 TRAMP METAL BIN
V
V
V
ES
SIZE:
C2-3240-ST-089
CV-025 TRAMP METAL CHUTE
V
ES
C2-3240-BN-006
V
SIZE:
C2-3240-SL-007
CV-025- BELT SCALE
ES
AG
KM
LT
ISSUED FOR CLIENT REVIEW
23-Dec-11
B
RP
ISSUED FOR COMBINED REVIEW
23-Jun-11
A
12/23/2011
K.MUNDY
A. GUNSON
T. OH
L. TAMELIN
1/3/2012
11:30:49
AM
WBS: 3240
B
PIPING AND INSTRUMENTATION DIAGRAM
SCREENING BUILDING
3200-25J-024
COARSE SCREENING O/S CONVEYOR NO. 2
V
V
SIZE:
C2-3240-ST-080
CV-025 HEAD CHUTE
V
V
C2-3240-ZM-225
C2-3240-ST-080
V
SIZE:
MATERIAL:
MOTOR:
C2-3240-PP-022
COARSE SCREEN AREA SUMP PUMP EAST
C2-3240-MA-007
SIZE: 1829 mm X 475 m L
MATERIAL:
MOTOR: 746.00 kW
C2-3240-CV-025
COARSE SCREEN O/S CONVEYOR NO. 2
V
SIZE:
C2-3240-MA-007
CV-025 SELF CLEANING MAGNET
V
SIZE:
C2-3240-MD-014
CV-025 METAL DETECTOR
C2-3240-MD-014
V
C2-3240-ST-089
C2-3240-PP-022
ES
C2-3240-DV-025
D
4
F
B
A
3
2
1 5 6 8
E
7
C
REV.
APPROVED
CHK.
DES.
REV. DATE REVISION DESCRIPTION
CLIENT
LEAD ENGINEER
SCALE DRAWING NUMBER
CHECK DESIGN CHECK DRAWING
DESIGNED BY DRAWN BY
APPROVAL DATE
APPROVAL DATE
APPROVED
CHK.
DES.
REV. DATE REVISION DESCRIPTION REFERENCE DRAWING No.
1:100
0
1:200
5m
10m
0
5m
10m
15m
20m
1:500
10m
0
20m
30m
40m
50m
1:1000
0
100m
50m
1:20
0
0.5m
1m
1.5m
2m
0
1:25
0.5m
1m
1.5m
1:33
1/3
2.5m
2m
0
1m
2m
3m
0
1:50
1m
2m
3m
4m
5m
CAD FILE NAME: P:0CAD000SPEM**
MODEL UPDATED:
DWG. FILE UPDATED:
MANUAL CHANGES MADE: YES NO YES NO YES NO
PROJECT MANAGER
ENGINEERING MANAGER
AREA PROJECTENGINEER
REFERENCE DRAWINGS
SAFETY SHARE:
APPROVAL DATE
CONTRACT
NO.
SAFETY SHARE :
BA6CVA1.IGR
NOTICE: THIS DRAWING HAS NOT BEEN PUBLISHED AND IS THE SOLE
PROPERTY OF FLUOR AND IS LENT TO THE BORROWER FOR THEIR
CONFIDENTIAL USE ONLY, AND IN CONSIDERATION OF THE LOAN OF THIS
DRAWING, THE BORROWER PROMISES AND AGREES TO RETURN IT UPON
REQUEST AND AGREES THAT IT WILL NOT BE REPRODUCED, COPIED LENT
OR OTHERWISE DISPOSED OF DIRECTLY OR INDIRECTLY, NOR USED FOR
ANY OTHER PURPOSE OTHER THAN WHICH IT IS FURNISHED.
NONE
Apr 2011
240K-C2-
L, P2
GEAR
REDUCER
3240
02431
VI
3240
02432
LE
3240
02432
LSL
3240
02433
TE
3240
02432
LA
3240
02433
TI
3240
02431
VT
3240
02431
VE
3240
02403 B
ST
3240
02403 B
SE
3240
02403 B
SI
H, P2
HH,P1
H, P2
HH,P1
V
V
V ES
ES
V
V
3240
02481
II
3240
02481
HS
J/SP
3240
02481
XA
3240
02411
XA
+
A TO N
FAULT
ES
C2-3240-CV-025
C2-3240-ZM-007
VENDOR
BRG
REAR
3240
II
3240
XA
3240
XA
+
A TO ?
SAFETY
INTERLOCKS
FAULT
3240
G
TE
3240
H
TE
3240
G
TI
3240
H
TI
AFD
BRG
FRONT
H, P2
HH, P1
BRG
REAR
H, P2
HH, P1
3240
HS
J/SP
BRG
FRONT
C2-3240-ZM-225
HYDRAULIC RAIL CLAMP
C2-3240-DV-025
CV-025 SHUTTLE HEAD
C2-3240-ZM-007
SENSOR GUARD BELT RIP DETECTOR
3240
02422
ZSHH
V
A-B
A-B
A-B
ES
NOTE 1
A-L A-L
A-L A-L
NOTE 1
NOTE 1
B
E D
C
F
G
J
H
L
K
A
NOTE 1
NOTES:
1. IN INSTRUMENT NUMBERING SUFFIXES, LETTER "I" AND "O" ARE NOT USED.
GEAR
REDUCER
GEAR
REDUCER
GEAR
REDUCER
K
F
G
T1
T5
3240
02531
LA
3240
02531
LSL
3240
02531
LE
M
3240
02518
FIT
3240
02518
FIC
3240
02542
LE
3240
02542
LSL
3240
02543
TI
3240
02541
VI
3240
02543
TE
3240
02541
VT
3240
02541
VE
3240
02542
LA
3240
02551
VI
3240
02551
VT
3240
02551
VE
3240
XA
3240
II
3240
HS
3240
02553
TI
3240
02553
TE
3240
02533
TI
3240
02533
TE
3240
H
TI
BRG
FRONT
H, P2
HH, P1
3240
02552
LE
3240
02552
LSL
3240
02552
LA
3240
H
TE
3240
G
TE
3240
G
TI
3240
02552
LA
3240
02552
LSL
3240
02552
LE
3240
02513 B
XE
3240
02513 A
XY
3240
02513
XIH
3240
02523
NS
3240
02523
NA
3240
02505
ZAHH
3240
02504
ZAHH
3240
02513 B
XY
3240
02513 A
XE
3240
02584
II
3240
02584
HS
J/SP
3240
02580
XA
3240
02510
WIT
3240
02582
XA
3240
02508
XA
3230
02502
HSA
P1 J-M
RHS
3240
02504
ZAHH
3240
02507
TI
RHS LHS
3240
02580
XA
3240
02505
ZAHH
3240
02515 A
LAH
P1
3240
02580
HS
J/SP
3240
02580
II
3240
02510
WE
3240
02521
SE
3240
02512 A
ZS
3240
02503 B
SI
3240
02510
WI
L, P2
3240
02512 A
ZA
P1
3240
02515 B
LE
3240
02502
HSA
3230
02508 B
XS
3240
02522
ZS
3240
02510
SE
3240
02504
ZSH
LHS
3240
02505
ZSH
RHS
3240
02504
ZA
3240
02512 C
ZS
3240
02501
HSS
LHS
3240
02505
ZSHH
3240
02503
SDI
3240
02503 A
ST
3240
02503 A
SI
3240
02512 B
ZS
3240
02504
ZSHH
3240
02501
HSA
P1
3240
02506
TE
3240
02515 A
LSH
3240
02582
HS
J/SP
3240
02581
HS
J/SP
3240
02515 A
LE
3240
02404
ZSH
3240
02503 B
SE
3240
02515 B
LAH
P1
3240
02505
ZSH
3240
02515 B
LSH
3240
02512 D
ZS
3240
02508 A
XS
3240
02505
ZSHH
3240
02582
II
3240
02501
HSS
3240
02505
ZA
A-C
RHS
3240
02507
TE
3240
02503 B
ST
3240
02581
II
3240
02512 B
ZA
P2
3240
02521
SS
3240
02505
ZAH
3240
02502
HSS
RHS
3240
02504
ZAH
3240
02503 A
SE
3240
02512 D
ZA
3240
02581
XA
FAULT
3240
02522
ZAHH
A-B
3230
02501
HSA
LHS
J-M
3240
02502
HSS
RHS
3240
02512 C
ZA
3240
02521
SA P1
3240
02504
ZSHH
3240
02522
ZSHH
3240
02522
ZAH
P1
P2
A-B
3240
02506
TI
WRIM
FRESH WATER
3442 5100-25J-014
C.O. SCREEN U/S
C.O. SCREEN NO. 2,
C2-3240-SC-012
1812 3200-25J-012
C.O. SCREEN U/S
C.O. SCREEN NO. 3,
C2-3240-SC-013
1813 3200-25J-013
C.O. SCREEN U/S
C.O. SCREEN NO. 4,
C2-3240-SC-014
1814 3200-25J-014
DUST
COARSE SCREEN DUST
COLLECTOR NO. 4,
3434 3200-25J-020
DUST
COARSE SCREEN DUST
COLLECTOR NO. 3,
3435 3200-25J-020
DUST
COARSE SCREEN DUST
COLLECTOR NO. 2,
3436 3200-25J-020
DUST
COARSE SCREEN DUST
COLLECTOR NO. 1,
3437 3200-25J-020
C.O. SCREEN U/S
C.O. SCREEN NO. 1,
C2-3240-SC-011
1364 3200-25J-011
BALL MILL SCREEN O/S
BALL MILL SCREEN O/S
CONVEYOR NO. 1,
1307 3300-25J-020
BELT WASH
COOLING WATER RETURN
PUMPBOX, C2-3230-BX-030
3252 3200-25J-079
HPGR FEED
HPGR FEED SURGE BIN NO. 1,
C2-3230-BN-031
1816 3200-25J-048
H, P2
HH,P1
L, P2
H, P2
HH,P1
L, P2
H, P2
HH,P1
L, P2
FAULT
A TO ?
BRG
REAR
BRG
FRONT
J/SP
H, P2
HH,P1
H, P2
HH,P1
BRG
REAR
H, P2
HH, P1
AFD
H, P2
HH,P1
SAFETY
INTERLOCKS
H
J
E D
C
C2-3240-DC-234
C2-3240-DC-233
C2-3240-DC-232
C2-3240-DC-231
C2-3310-CV-019
P1
P1
LHS
RHS
P2
FAULT
WRIM
WRIM
A TO N
A-H
RHS
TEAR
H, P1
HH, P1
H, P2
J-M
A-C
P2
LHS
OVER
TRAVEL
HYDRAULIC
RAIL CLAMP
FAULT
A,B
LHS
RHS
END
TRAVEL
LHS
D,E
P1
HH, P1
H, P2
P1
P2
END
TRAVEL
VENDOR
D, E
NOTE 1
NOTES:
1. IN INSTRUMENT NUMBERING SOFFIXES, LETTER "I" AND "O" ARE NOT USED.
A-K
A-H
A-K
NOTE 1
A-K A-K
HH, P1
H, P2
LHS
B
NOTE 1
A
RHS D,E
A-C
HH, P1
H, P2
FAULT
LHS
A-H
P2
P1
A-H
LHS
D,E
RHS
OVER
TRAVEL
P1
P2
P2
J-M
SENSOR
GUARD
A-C
A-B
A-B
C2-3240-BN-019
3240
02511
XA
+
C2-3240-DV-041
CV-031 SHUTTLE HEAD
ES
3240-WF-1236-C1A-2"-N
ES
ES
C2-3240-SL-006
V
V
SIZE:
C2-3240-MD-015
CV-031 METAL DETECTOR
ES
C2-3240-MD-015
V
V V
C2-3240-ST-085
AG
KM
LT
ISSUED FOR CLIENT REVIEW
23-Dec-11
B
RP
ISSUED FOR COMBINED REVIEW
23-Jun-11
A
12/23/2011
K.MUNDY
A. GUNSON
T. OH
L. TAMELIN
1/3/2012
1:24:24
PM
WBS: 3240
B
PIPING AND INSTRUMENTATION DIAGRAM
SCREENING BUILDING
3200-25J-025
TERTIARY CRUSHER SURGE BIN CONV. NO. 1
T4
C2-3240-CV-031
T4
C2-3240-ST-087
C2-3240-ZM-231
C2-3240-MA-013
T4
SIZE:
C2-3240-ST-087
CV-031 CONVEYOR HEAD CHUTE
3240
XA
+
C2-3240-ZE-018
C2-3240-ZE-018
CV-031 SENSOR GUARD BELT RIP DETECTOR
ES
V
3240-WF-1234-C1A-2"-N
3240-WF- -C1A-3"-N
V
SIZE:
C2-3240-MA-013
CV-031 SELF CLEANING MAGNET
ES
V
V
ES
SIZE:
C2-3240-SL-006
CV-031 BELT SCALE
ES
V
SIZE:
C2-3240-ST-085
CV-031 TRAMP METAL CHUTE
V
V
V
SIZE: 2438 mm X 460 m L
MATERIAL:
MOTOR: 2238.00 kW
C2-3240-CV-031
TERTIARY CRUSHER SURGE BIN FEED CONVEYOR NO. 1
V
SIZE:
MATERIAL:
CAPACITY:
TRIM:
C2-3240-BN-019
CV-031 TRAMP METAL BIN
V
V
V
V
V
C2-3240-ZM-231
HYDRAULIC RAIL CLAMP
V
V
V
3240
02518
FV
+
V
V V
ES
V V
V
V
3"x2"
3240
02518
FE
+
C2-3240-ZM-019
SIZE:
C2-3240-ZM-019
CV-031 BELT CLEANER STATION
D
4
F
B
A
3
2
1 5 6 8
E
7
C
REV.
APPROVED
CHK.
DES.
REV. DATE REVISION DESCRIPTION
CLIENT
LEAD ENGINEER
SCALE DRAWING NUMBER
CHECK DESIGN CHECK DRAWING
DESIGNED BY DRAWN BY
APPROVAL DATE
APPROVAL DATE
APPROVED
CHK.
DES.
REV. DATE REVISION DESCRIPTION REFERENCE DRAWING No.
1:100
0
1:200
5m
10m
0
5m
10m
15m
20m
1:500
10m
0
20m
30m
40m
50m
1:1000
0
100m
50m
1:20
0
0.5m
1m
1.5m
2m
0
1:25
0.5m
1m
1.5m
1:33
1/3
2.5m
2m
0
1m
2m
3m
0
1:50
1m
2m
3m
4m
5m
CAD FILE NAME: P:0CAD000SPEM**
MODEL UPDATED:
DWG. FILE UPDATED:
MANUAL CHANGES MADE: YES NO YES NO YES NO
PROJECT MANAGER
ENGINEERING MANAGER
AREA PROJECTENGINEER
REFERENCE DRAWINGS
SAFETY SHARE:
APPROVAL DATE
CONTRACT
NO.
SAFETY SHARE :
BA6CVA1.IGR
NOTICE: THIS DRAWING HAS NOT BEEN PUBLISHED AND IS THE SOLE
PROPERTY OF FLUOR AND IS LENT TO THE BORROWER FOR THEIR
CONFIDENTIAL USE ONLY, AND IN CONSIDERATION OF THE LOAN OF THIS
DRAWING, THE BORROWER PROMISES AND AGREES TO RETURN IT UPON
REQUEST AND AGREES THAT IT WILL NOT BE REPRODUCED, COPIED LENT
OR OTHERWISE DISPOSED OF DIRECTLY OR INDIRECTLY, NOR USED FOR
ANY OTHER PURPOSE OTHER THAN WHICH IT IS FURNISHED.
NONE
Apr 2011
240K-C2-
T5
GEAR
REDUCER
GEAR
REDUCER
GEAR
REDUCER
G
F
K
T1
3240
02613 B
XY
3240
02604
ZAH
3240
02604
ZSH
LHS
3240
02583
HS
3240
02583 H
TI
BRG
FRONT
H, P2
HH, P1
3240
02601
HSA
LHS
J-M
3240
02621
SS
3240
02613 A
XE
3240
02602
HSA
P1 J-M
RHS
3240
02605
ZAHH
3240
02612 C
ZA
3240
02613 A
XY
3240
02603 A
SE
3240
02605
ZSH
RHS
3240
02613 B
XE
3240
02684
II
3240
02684
HS
J/SP
3240
02684
XA
3240
02642
LE
3240
02642
LSL
3240
02652
LA
3240
02631
VI
3240
02652
LSL
3240
02631
VT
3240
02680
II
3240
02651
VE
3240
02680
HS
J/SP
3240
02651
VI
3240
02680
XA
3240
02651
VT
3240
02681
HS
J/SP
3240
02642
LA
3240
02653
TI
3240
02653
TE
3240
02622
ZSHH
3240
02652
LE
3240
02681
II
3240
02631
VE
3240
02681
XA
FAULT
3240
02643
TI
3240
02633
TI
3240
02632
LA
3240
02641
VI
3240
02503 B
SI
3240
02633
TE
3240
02643
TE
3240
02503 B
SE
3240
02632
LSL
3240
02503 B
ST
3240
02641
VT
3240
02632
LE
3240
02641
VE
3240
02612 D
ZS
3240
02621
SE
3240
02607
TE
3240
02601
HSS
LHS
3240
02621
SA P1
3240
02606
TE
3240
02615 B
LAH
P1
3240
02608 A
XS
3240
02615 B
LSH
3240
02602
HSS
RHS
3240
02603 A
ST
3240
02615 B
LE
3240
02604
ZAHH
3240
02604
ZAH
3240
02605
ZSHH
3240
02605
ZAHH
3240
02622
ZAH
P1
P2
3240
02605
ZAH
3240
02610
SE
3240
02603 A
SI
3240
02612 A
ZA
P1
3240
02615 A
LAH
P1
3240
02605
ZSH
3240
02604
ZSHH
3240
02610
WI
L, P2
3240
02615 A
LSH
3240
02604
ZSH
3240
02622
ZS
3240
02605
ZAH
A-C
RHS
3240
02610
WIT
3240
02615 A
LE
3240
02682
XA
3240
02603
NA
3240
02622
ZAHH
3240
02610
WE
3240
02603
NS
3240
02601
HSA
P1
3240
02601
HSS
3240
02602
HSS
RHS
3240
02682
HS
J/SP
3240
02605
ZSHH
3240
02612 B
ZA
P2
3240
02682
II
3240
02612 D
ZA
3240
02607
TI
LHS
RHS
3240
02583 G
TI
3240
02583 H
TE
3240
02583 G
TE
3240
02618
FIT
M
3240
02583
XA
3240
02583
II
3240
02612 B
ZS
3240
02602
HSA
3240
02612 A
ZS
3240
02604
ZSHH
3240
02608
XA
3240
02618
FIC
3240
02603
SDI
3240
02612 C
ZS
3240
02606
TI
3240
02604
ZAHH
3240
02608 B
XS
3240
02613
XIH
WRIM
FRESH WATER
3456 5100-25J-014
C.O. SCREEN U/S
C.O. SCREEN NO. 7,
C2-3240-SC-023
1910 3200-25J-021
DUST
COARSE SCREENING DUST
COLLECTOR NO.8,
3438 3200-25J-020
DUST
COARSE SCREENING DUST
COLLECTOR NO.7,
3439 3200-25J-020
DUST
COARSE SCREENING DUST
COLLECTOR NO.6,
3440 3200-25J-020
DUST
COARSE SCREENING DUST
COLLECTOR NO.5,
3441 3200-25J-020
C.O. SCREEN U/S
C.O. SCREEN NO. 5,
C2-3240-SC-021
1905 3200-25J-015
C.O. SCREEN U/S
C.O. SCREEN NO. 8,
C2-3240-SC-024
1912 3200-25J-022
BALL MILL SCREEN O/S
BALL MILL SCREEN O/S
CONVEYOR NO. 2,
1460 3300-25J-021
BELT WASH
COOLING WATER RETURN
PUMPBOX, C2-3230-BX-030
3249 3200-25J-079
HPGR FEED
HPGR FEED SURGE BIN NO. 5,
C2-3230-BN-035
1904 3200-25J-056
C.O. SCREEN U/S
C.O. SCREEN NO. 6,
C2-3240-SC-022
1906 3200-25J-016
J-M
BRG
REAR
H, P2
HH, P1
LHS
P2
FAULT
END
TRAVEL
A-C
P2
P1
H, P2
HH,P1
L, P2
H, P2
HH,P1
H, P2
HH,P1
A TO ?
L, P2
FAULT
L, P2
A-B
A-B
A-B
SENSOR
GUARD H, P2
HH,P1
FAULT
H, P2
HH,P1
H, P2
HH,P1
C2-3310-CV-029
LHS
A-H
OVER
TRAVEL
P2
D,E
P1
P2
D, E
LHS
WRIM
RHS
A-C
P2
HH, P1
H, P2
HH, P1
H, P2
A-C
WRIM
HYDRAULIC
RAIL CLAMP
END
TRAVEL
HH, P1
H, P2
P1
LHS
RHS
C
D
P2
C2-3240-DC-045
C2-3240-DC-044
C2-3240-DC-043
C2-3240-DC-042
FAULT
SAFETY
INTERLOCKS
A TO ?
BRG
REAR
BRG
FRONT
J/SP
VENDOR
LHS
D,E
E
LHS
OVER
TRAVEL
A-H
RHS
P1
P1
A-H
A-H
HH, P1
H, P2
A,B
P1
D,E
RHS
TEAR
H, P1
J
A-B
H
RHS
J-M
LHS
3240-WF-1469-C1A-2"-N
C2-3240-ST-095
C2-3240-ZM-241
SIZE:
MATERIAL:
CAPACITY:
TRIM:
C2-3240-BN-029
CV-041 TRAMP METAL BIN
V
SIZE:
MATERIAL:
MOTOR: 2238.00 kW
C2-3240-CV-041
TERTIARY CRUSHER SURGE BIN FEED CONVEYOR NO. 2
AG
KM
LT
ISSUED FOR CLIENT REVIEW
23-Dec-11
B
RP
ISSUED FOR COMBINED REVIEW
23-Jun-11
A
12/23/2011
K.MUNDY
A. GUNSON
T. OH
L. TAMELIN
1/3/2012
1:25:11
PM
WBS: 3240
B
PIPING AND INSTRUMENTATION DIAGRAM
SCREENING BUILDING
3200-25J-026
TERTIARY CRUSHER SURGE BIN CONV. NO. 2
V
V
V
SIZE:
C2-3240-ST-095
CV-041 TRAMP METAL CHUTE
C2-3240-BN-029
V
ES
SIZE:
C2-3240-SL-008
CV-041 BELT SCALE
3240-WF-1235-C1A-2"-N
3240-WF- -C1A-3"-N
ES
V
V V
V
V V 3240
02611
XA
+
V
V
V
SIZE:
C2-3240-ST-099
CONVEYOR CV-041 HEAD CHUTE
T4
ES
V
V
T4
SIZE:
C2-3240-MD-016
CV-041 METAL DETECTOR
C2-3240-SL-008
C2-3240-MD-016
SIZE:
C2-3240-MA-014
CV-041 SELF CLEANING MAGNET
V
V
V
V
C2-3240-MA-014
SIZE:
C2-3240-ZM-029
CV-041 BELT CLEANER STATION
C2-3240-ZM-029
C2-3240-DV-051
C2-3240-CV-041
T4
ES
C2-3240-ST-099
V
V
V
V
V
V
ES
V
V
C2-3240-ZM-241
HYDRAULIC RAIL CLAMP
ES
C2-3240-DV-051
CV-041 SHUTTLE HEAD
3240
02583
XA
+
3240
02618
FV
+
3240
02618
FE
+
V
C2-3240-ZE-019
C2-3240-ZE-019
CV-041 SENOR GUARD BELT RIP DECTECTOR
ES
ES
ES
D
4
F
B
A
3
2
1 5 6 8
E
7
C
REV.
APPROVED
CHK.
DES.
REV. DATE REVISION DESCRIPTION
CLIENT
LEAD ENGINEER
SCALE DRAWING NUMBER
CHECK DESIGN CHECK DRAWING
DESIGNED BY DRAWN BY
APPROVAL DATE
APPROVAL DATE
APPROVED
CHK.
DES.
REV. DATE REVISION DESCRIPTION REFERENCE DRAWING No.
1:100
0
1:200
5m
10m
0
5m
10m
15m
20m
1:500
10m
0
20m
30m
40m
50m
1:1000
0
100m
50m
1:20
0
0.5m
1m
1.5m
2m
0
1:25
0.5m
1m
1.5m
1:33
1/3
2.5m
2m
0
1m
2m
3m
0
1:50
1m
2m
3m
4m
5m
CAD FILE NAME: P:0CAD000SPEM**
MODEL UPDATED:
DWG. FILE UPDATED:
MANUAL CHANGES MADE: YES NO YES NO YES NO
PROJECT MANAGER
ENGINEERING MANAGER
AREA PROJECTENGINEER
REFERENCE DRAWINGS
SAFETY SHARE:
APPROVAL DATE
CONTRACT
NO.
SAFETY SHARE :
BA6CVA1.IGR
NOTICE: THIS DRAWING HAS NOT BEEN PUBLISHED AND IS THE SOLE
PROPERTY OF FLUOR AND IS LENT TO THE BORROWER FOR THEIR
CONFIDENTIAL USE ONLY, AND IN CONSIDERATION OF THE LOAN OF THIS
DRAWING, THE BORROWER PROMISES AND AGREES TO RETURN IT UPON
REQUEST AND AGREES THAT IT WILL NOT BE REPRODUCED, COPIED LENT
OR OTHERWISE DISPOSED OF DIRECTLY OR INDIRECTLY, NOR USED FOR
ANY OTHER PURPOSE OTHER THAN WHICH IT IS FURNISHED.
NONE
Apr 2011
240K-C2-
A-K
A-K A-K
A-K
NOTE 1
NOTE 1
A
B
NOTE 1
NOTES:
1. IN INSTRUMENT NUMBERING SUFFIXES, LETTER "I" AND "O" ARE NOT USED.
AFD
T1
M
RHS
A-D
M
VENDOR
VENDOR
HH, P2
H, P1
3220
02709
ZI
3220
02709
ZS
P1
3220
02716
LT
3220
02703 B
SI
3220
02783
II
3220
02783 H
TI
BRG
REAR
H,P2
HH,P1
3220
02781
XA
3220
02706 B
TE
3220
02706 A
TE
3220
02704
ZAH
3220
32781
HS
J/SP
3220
02705
ZSH
3220
02781
II
3220
02783
HS
J/SP
3220
02716 A
LI
3220
02719
LAH
3220
02705
ZAHH
LHS, P1
3220
02716
LI
H, P2
L, P2
3220
02715 B
LSH
3220
02782
HS
3220
02703 B
SE
3220
02703 A
ST
3220
02784
XA
3220
02784
HS
3220
02702
HSS
A,B
RHS
3220
02703 A
SE
3220
02784
II
3220
02714
LIC
3220
02714
LE
3220
02703 B
ST
3220
02720
NS
3220
02720
NA
3220
02783
JI
3220
02715 B
LAH
P1
3220
02707 B
TE
3220
32702
SE
3220
02781
HS
3220
02704
ZSH
A,B
LHS
3220
32703
VI
HH, P1
H, P2
A-D
3220
02714
LT
3220
32703
VE
3220
02710
SE
3220
32702
SAL
L, P2
3220
02782
II
3220
02783 G
TE
3220
02701
HSS
A,B
3220
02783
XA FAULT
3220
02710
WE
LHS
3220
02703 A
SI
3220
02707 B
TI
3220
02783 G
TI
BRG
FRONT
H,P2
HH,P1
3220
02715 B
LE
3220
32701
LI
L, P2
3220
32781
XA
3220
02708 B
XS
3220
02707 A
TE
3220
32704
LAH
P1
3220
02717
LSL
3220
32704
LSH
3220
02702
HSA
LHS
A,B
3220
02708
XA
P1
3220
02715 A
LAH
P1
3220
02717
LAL
3220
02701
HSA
3220
32701
PDI
H, P2
3220
02710
WIT
3220
02714 A
LI
3220
32703
VT
A-D
3220
32702
SSL
3220
02710
WI
3220
32701
TI
3220
02706 B
TI HH, P1
H, P2
3220
02705
ZSHH
A,B 3220
02704
ZAHH
3220
02704
ZSHH
3220
02715 A
LE
3220
02703
SDI
3220
32781
II
3220
02715 A
LSH
3220
02716
LE
3220
02707 A
TI HH, P1
H, P2
3220
02783 H
TE
3220
02708 A
XS
TEAR
3220
02705
ZAH
3220
02782
XA
3220
02706 A
TI HH, P1
H, P2
3220
02719
LSH
PLANT AIR
2991 3200-25J-017
DUST
DUST COLLECTOR,
C2-3220-DC-122
4111 3200-25J-047
COARSE SCREEN O/S
COARSE SCREEN O/S
CONVEYOR NO. 1,
1810 3200-25J-023
COARSE SCREEN O/S
C2-3220-BN-022
3231 3200-25J-031
SEC CRUSHER PRODUCT
SEC CRUSHER DISC. CONV.
NO. 1, C2-3220-CV-016
1818 3200-25J-045
DUST
DUST COLLECTOR,
C2-3220-DC-121
1416 3200-25J-047
FAULT
P2
VENDOR
RHS, P1
P1
P1
A,B
DUCTING
FAULT
RHS
LHS
A, B
LHS
ST/SP
RSH
RHS
A, B
FAULT
HH, P1
H, P2
FEEDER AFD DRIVE
BIN CONTINUED ON
P&ID 3200-25J-031
C2-3240-CV-015
LHS
H, P1
DUCTING
HH, P1
H, P2
ST/SP
EXPERT
SYSTEM
J/SP
P1
P2
VENDOR:
P.O.NO.:
MANUFACTURER:
P1
DUCTING
RHS
A,B
FAULT
RSH LHS
ES
C2-3220-SL-011
C2-3220-ST-121
C2-3220-DC-065
V
C2-3220-FA-065
SIZE:
C2-3220-ST-157
SEC CRUSHER NO. 1 FEED CHUTE-SPARE
SIZE:
MOTOR: 2.24 kW
C2-3220-BL-020
SEC CRUSHER NO.1 DUST SEAL BLOWER
SIZE:
MOTOR:
C2-3220-CR-011
SEC CRUSHER NO. 1
SIZE:
MOTOR:
C2-3220-FE-031
SEC CRUSHER FEEDER NO. 1
AG
KM
LT
ISSUED FOR CLIENT REVIEW
23-Dec-11
B
RP
ISSUED FOR COMBINED REVIEW
23-Jun-11
A
12/23/2011
K.MUNDY
A. GUNSON
T. OH
L. TAMELIN
12/23/2011
1:57:47
PM
WBS: 3220
B
PIPING AND INSTRUMENTATION DIAGRAM
SECONDARY CRUSHING
3200-25J-027
SECONDARY CRUSHER NO. 1
SIZE:
MOTOR:
C2-3220-FA-065
SEC CRUSHER SURGE BIN DUST COLLECTOR NO. 2 FAN
C2-3220-BN-021
C2-3220-ST-131
V
C2-3220-FE-031
C2-3220-BL-020
TO ATMOSPHERE
V
V
V
V
V
V
C2-3220-CR-011
V V
C2-3220-ST-141
V
V
V
V
V V
V
3220-AP-1287-C1A-2"-N
V
3220-AP-1040-C1A-2"-N
ES
ES
SIZE:
C2-3220-SL-011
SEC CRUSHER FEEDER NO.1 VOLUMETRIC BELT SCALE
ES
SIZE: 850t LIVE
MATERIAL:
CAPACITY:
TRIM:C1A
C2-3220-BN-021
SEC CRUSHER NO. 1 SURGE BIN
V
ES
V
V
V
SIZE:
C2-3220-ST-131
SEC CRUSHER NO.1 FEED CHUTE
V
ES
V
TO ATMOSPHERE
C2-3220-FA-066
C2-3220-DC-066
ES
SIZE:
C2-3220-ST-121
SEC CRUSHER NO. 1 SURGE BIN RECLAIM FEEDER SKIRT
V
ES
SIZE:
C2-3220-DC-065
SEC CRUSHER SURGE BIN DUST COLLECTOR NO. 2
ES
V
V
V
ES
ES
SIZE:
C2-3220-ST-141
SEC CRUSHER NO.1 DISCHARGE CHUTE
SIZE:
C2-3220-MD-047
FE-031 METAL DETECTOR
SIZE:
MOTOR:
C2-3220-FA-066
SEC CRUSHER SURGE BIN DUST COLLECTOR NO. 1 FAN
SIZE:
C2-3220-DC-066
SEC CRUSHER SURGE BIN DUST COLLECTOR NO. 1
V
ES
C2-3220-MD-047
D
4
F
B
A
3
2
1 5 6 8
E
7
C
REV.
APPROVED
CHK.
DES.
REV. DATE REVISION DESCRIPTION
CLIENT
LEAD ENGINEER
SCALE DRAWING NUMBER
CHECK DESIGN CHECK DRAWING
DESIGNED BY DRAWN BY
APPROVAL DATE
APPROVAL DATE
APPROVED
CHK.
DES.
REV. DATE REVISION DESCRIPTION REFERENCE DRAWING No.
1:100
0
1:200
5m
10m
0
5m
10m
15m
20m
1:500
10m
0
20m
30m
40m
50m
1:1000
0
100m
50m
1:20
0
0.5m
1m
1.5m
2m
0
1:25
0.5m
1m
1.5m
1:33
1/3
2.5m
2m
0
1m
2m
3m
0
1:50
1m
2m
3m
4m
5m
CAD FILE NAME: P:0CAD000SPEM**
MODEL UPDATED:
DWG. FILE UPDATED:
MANUAL CHANGES MADE: YES NO YES NO YES NO
PROJECT MANAGER
ENGINEERING MANAGER
AREA PROJECTENGINEER
REFERENCE DRAWINGS
SAFETY SHARE:
APPROVAL DATE
CONTRACT
NO.
SAFETY SHARE :
BA6CVA1.IGR
NOTICE: THIS DRAWING HAS NOT BEEN PUBLISHED AND IS THE SOLE
PROPERTY OF FLUOR AND IS LENT TO THE BORROWER FOR THEIR
CONFIDENTIAL USE ONLY, AND IN CONSIDERATION OF THE LOAN OF THIS
DRAWING, THE BORROWER PROMISES AND AGREES TO RETURN IT UPON
REQUEST AND AGREES THAT IT WILL NOT BE REPRODUCED, COPIED LENT
OR OTHERWISE DISPOSED OF DIRECTLY OR INDIRECTLY, NOR USED FOR
ANY OTHER PURPOSE OTHER THAN WHICH IT IS FURNISHED.
NONE
Apr 2011
240K-C2-
3220
02722
PDAH
3220
02723
PDAH
D
4
F
B
A
3
2
1 5 6 8
E
7
C
REV.
APPROVED
CHK.
DES.
REV. DATE REVISION DESCRIPTION
CLIENT
LEAD ENGINEER
SCALE DRAWING NUMBER
CHECK DESIGN CHECK DRAWING
DESIGNED BY DRAWN BY
APPROVAL DATE
APPROVAL DATE
APPROVED
CHK.
DES.
REV. DATE REVISION DESCRIPTION REFERENCE DRAWING No.
1:100
0
1:200
5m
10m
0
5m
10m
15m
20m
1:500
10m
0
20m
30m
40m
50m
1:1000
0
100m
50m
1:20
0
0.5m
1m
1.5m
2m
0
1:25
0.5m
1m
1.5m
1:33
1/3
2.5m
2m
0
1m
2m
3m
0
1:50
1m
2m
3m
4m
5m
CAD FILE NAME: P:0CAD000SPEM**
MODEL UPDATED:
DWG. FILE UPDATED:
MANUAL CHANGES MADE: YES NO YES NO YES NO
PROJECT MANAGER
ENGINEERING MANAGER
AREA PROJECTENGINEER
REFERENCE DRAWINGS
SAFETY SHARE:
APPROVAL DATE
CONTRACT
NO.
SAFETY SHARE :
BA6CVA1.IGR
NOTICE: THIS DRAWING HAS NOT BEEN PUBLISHED AND IS THE SOLE
PROPERTY OF FLUOR AND IS LENT TO THE BORROWER FOR THEIR
CONFIDENTIAL USE ONLY, AND IN CONSIDERATION OF THE LOAN OF THIS
DRAWING, THE BORROWER PROMISES AND AGREES TO RETURN IT UPON
REQUEST AND AGREES THAT IT WILL NOT BE REPRODUCED, COPIED LENT
OR OTHERWISE DISPOSED OF DIRECTLY OR INDIRECTLY, NOR USED FOR
ANY OTHER PURPOSE OTHER THAN WHICH IT IS FURNISHED.
NONE
Apr 2011
240K-C2-
A-D
M
3220
03181
II
3220
03181
XA
3220
03181
HS
3220
03182
II
3220
03182
XA
3220
03182
HS
3220
03116 A
LI
3220
03116
LI
3220
03117
LSL
3220
03117
LAL
3220
03116
LE
3220
03116
LT
3220
03110
SE
3220
03106 A
TE
3220
03106 A
TI HH, P1
H, P2
3220
03107 A
TE
HH, P1
H, P2
3220
03107 A
TI
3220
03105
ZSH
3220
03105
ZSHH
RHS
3220
03104
ZSH
LHS
3220
03104
ZSHH
3220
03105
ZAHH
LHS, P1
3220
03104
ZAHH
3220
03102
HSS
RHS
3220
03101
HSS
3220
03102
HSA
3220
03101
HSA
3220
03110
WE
LHS
3220
03110
WIT
3220
03110
WI
3220
03108 A
XS
3220
03108 B
XS
3220
03108
XA
P1
3220
03103 B
SE
FEEDER AFD DRIVE
3220
03107 B
TI
3220
03106 B
TE
3220
03107 B
TE
HH, P1
H, P2
3220
03103 B
ST
3220
03106 B
TI HH, P1
H, P2
3220
03103 B
SI
3220
03103
SDI
3220
33181
HS
J/SP
3220
03115 A
LSH
3220
33181
II
3220
03114
LE
3220
03114
LT
3220
03115 A
LAH
3220
03114 A
LI
3220
03114
LIC
3220
33104
LSH
3220
33104
LAH
P1
3220
33103
VE
3220
33103
VT
A-D
3220
33103
VI
HH, P1
H, P2
A-D
3220
03119
LSH
3220
03119
LAH
3220
03183 G
TE
3220
03183 H
TE
3220
03183 G
TI
BRG
FRONT
H,P2
HH,P1
3220
03183 H
TI
BRG
REAR
H,P2
HH,P1
3220
03183
HS
J/SP
3220
03183
JI
3220
03183
II
3220
03183
XA
3220
33102
SE
3220
33102
SSL
3220
33102
SAL
P2
ST/SP
FAULT
J/SP
FAULT
P1
RHS, P1
RHS
A,B
EXPERT
SYSTEM
H, P1
VENDOR:
P.O.NO.:
MANUFACTURER:
P1
DUCTING
BIN CONTINUED ON
P&ID 3200-25J-032
3220-AP1039-C1A-2"-N
C2-3220-ST-122
C2-3220-SL-012
C2-3220-ST-132
C2-3220-CR-012
C2-3220-ST-142
C2-3220-BL-021
C2-3220-DC-067
C2-3220-FA-067
C2-3220-FE-032
SIZE: 850t LIVE
MATERIAL:
CAPACITY:
TRIM:C1A
C2-3220-BN-022
SEC CRUSHER NO.2 SURGE BIN
C2-3220-BN-022
H, P2
L, P2
LHS
RSH
A,B
A,B
LHS
A,B
P1
P1
P1
3220
33101
LI
L, P2
HH, P1
H, P2
DUCTING
DUCTING
3220
33101
TI
3220
33101
PDI
HH, P2
H, P1
H, P2
V V
SIZE:
C2-3220-SL-012
SEC CRUSHER FEEDER NO.2 VOLUMETRIC BELT SCALE
SIZE:
C2-3220-ST-132
SEC CRUSHER NO. 2 FEED CHUTE
SIZE:
C2-3220-ST-142
SEC CRUSHER NO. 2 DISCHARGE CHUTE
3220
33181
XA
3220
03105
ZAH
3220
03104
ZAH
P2
P2
A,B
A,B
TEAR
3220
03103 A
SI
3220
03103 A
SE
3220
03103 A
ST
3220
03115 A
LE
3220
03115 B
LSH
3220
03115 B
LAH
P1
3220
03115 B
LE
C2-3240-CV-015
TO ATMOSPHERE
BIN CONTINUED ON
P&ID 3200-25J-027
SEC CRUSHER PRODUCT
SEC CRUSHER DISCH. CONV.
NO. 1, C2-3220-CV-016
1820 3200-25J-045
DUST
DUST COLLECTOR,
C2-3220-DC-121
1417 3200-25J-047
ES
ES
V
V
V
ES
ES
V
V
V
V
ES
ES
V
ES
V
ES
V
ES
V
ES
T1
AG
KM
LT
ISSUED FOR CLIENT REVIEW
23-Dec-11
B
RP
ISSUED FOR COMBINED REVIEW
23-Jun-11
A
12/23/2011
K.MUNDY
A. GUNSON
T. OH
L. TAMELIN
1/3/2012
7:51:16
AM
WBS: 3220
B
PIPING AND INSTRUMENTATION DIAGRAM
SECONDARY CRUSHING
3200-25J-031
SECONDARY CRUSHER NO. 2
A,B
RHS LHS
FAULT
FAULT
COARSE SCREEN O/S
COARSE SCREEN O/S
CONVEYOR NO. 1,
3231 3200-25J-027
COARSE SCREEN O/S
SEC SURGE BIN NO.3,
C2-3220-BN-023
3234 3200-25J-032
SIZE:
MOTOR: 2.24 kW
C2-3220-BL-021
SEC CRUSHER NO. 2 DUST SEAL BLOWER
SIZE:
MOTOR: 932.00 kW
C2-3220-CR-012
SEC CRUSHER NO.2
SIZE:
MOTOR:
C2-3220-FE-032
SEC CRUSHER NO. 2 FEEDER
SIZE:
C2-3220-ST-122
SEC CRUSHER NO. 2 SURGE BIN FEEDER SKIRT
SIZE:
MOTOR:
C2-3220-FA-067
SEC CRUSHER SURGE BIN DUST COLLECTOR NO.2 FAN
SIZE:
C2-3220-DC-067
SEC CRUSHER SURGE BIN DUST COLLECTOR NO. 2
V
V
V
V
V
3220
03120
NS
3220
03120
NA
V
ES
C2-3220-MD-048
SIZE:
C2-3220-MD-048
FE-032 METAL DETECTOR
RHS
LHS
V
V
V
V
V
V
V
V
A,B
A,B
V
V
M
3220
03184
II
3220
03184
XA
3220
03184
HS
ST/SP
FAULT
C2-3220-DC-068
C2-3220-FA-068
TO ATMOSPHERE
SIZE:
MOTOR:
C2-3220-FA-068
SEC CRUSHER SURGE BIN DUST COLLECTOR NO.1 FAN
SIZE:
C2-3220-DC-068
SEC CRUSHER SURGE BIN DUST COLLECTOR NO. 1
3220-AP-1288-C1A-2"-N
PLANT AIR
2990 3200-25J-017
VENDOR
VENDOR
DUST
DUST COLLECTOR,
C2-3220-DC-122
4118 3200-25J-047
VENDOR
3220
03109
ZS
3220
03109
ZI
P1
ES
3220
03122
PDAH
3220
03123
PDAH
T1
M
LHS
LHS
A,B
A-D
M
HH, P2
H, P1
3220
33203
VI
HH, P1
H, P2
A-D
3220
03205
ZAHH LHS, P1
3220
03207 A
TI HH, P1
H, P2
3220
03214
LIC
3220
03217
LAL
3220
03215 A
LAH
P1
3220
03201
HSS
LHS
RHS
A,B
3220
33281
HS
J/SP
3220
03282
II
3220
03210
WIT
3220
03281
HS
3220
03283 H
TE
3220
03219
LSH
3220
33202
SSL
3220
33204
LSH
3220
03202
HSA
3220
03207 B
TE
HH, P1
H, P2
3220
03207 B
TI
3220
03283 H
TI
BRG
REAR
H,P2
HH,P1
3220
03201
HSA
3220
03214
LT
3220
03282
XA
3220
03281
XA
VENDOR
3220
03203 B
SE
3220
03216 A
LI
3220
03283
JI
3220
03217
LSL
3220
03214 A
LI
3220
03215 A
LSH
3220
03282
HS
3220
33281
XA
3220
33281
II
3220
03215 B
LSH
3220
03283
HS
J/SP
3220
03210
WI
3220
03205
ZAH
3220
03203 A
ST
3220
33202
SAL
P2
3220
33202
SE
3220
33203
VT
A-D
3220
03204
ZAHH
3220
03204
ZSH
3220
03283 G
TI
BRG
FRONT
H,P2
HH,P1
3220
03210
SE
3220
03210
WE
3220
03203
SDI
3220
03204
ZSHH
A,B
3220
03203 A
SI
3220
33204
LAH
P1
3220
03203 B
ST
3220
03215 B
LAH
P1
3220
03283 G
TE
3220
03206 B
TI HH, P1
H, P2
3220
33201
PDI
H, P2
3220
03220
NA
3220
03220
NS
3220
03204
ZAH
3220
03208
XA
P1
3220
03216
LI
H, P2
L, P2
3220
03215 B
LE
3220
03216
LE
3220
33201
LI
L, P2
3220
03283
II
3220
03219
LAH
3220
03216
LT
3220
03215 A
LE
3220
03203 B
SI
3220
03281
XA
3220
03281
II
3220
03208 B
XS
3220
03208 A
XS
TEAR
3220
33203
VE
3220
03281
HS
3220
03203 A
SE
3220
03205
ZSH
3220
03202
HSS
A,B
3220
03206 A
TI HH, P1
H, P2
3220
03214
LE
3220
03281
II
3220
03206 B
TE
3220
33201
TI
3220
03207 A
TE
3220
03205
ZSHH
3220
03283
XA
3220
03206 A
TE
PLANT AIR
2989 3200-25J-017
DUST
DUST COLLECTOR,
C2-3220-DC-122
4122
COARSE SCREEN O/S
COARSE SCREEN O/S
CONVEYOR NO. 1,
3234 3200-25J-031
SEC CRUSHER PRODUCT
SEC CRUSHER DISC CONV.
NO. 1, C2-3220-CV-016
1821 3200-25J-045
DUST
DUST COLLECTOR,
C2-3220-DC-121
1418 3200-25J-047
RHS
C2-3240-CV-015
P1
P1
A,B
VENDOR
BIN CONTINUED ON
P&ID 3200-25J-033
HH, P1
H, P2
J/SP
P2
P1
ST/SP
LSH
FEEDER AFD DRIVE
EXPERT
SYSTEM
P1
RHS
FAULT
P2
P1
FAULT
FAULT
LHS
A,B
FAULT
DUCTING
RHS
LHS
RHS
ST/SP
VENDOR:
P.O.NO.:
MANUFACTURER:
FAULT
A,B A,B
DUCTING
BIN CONTINUED ON
P&ID 3200-25J-031
RHS
A,B
H, P1
DUCTING
SIZE:
C2-3220-SL-013
SEC CRUSHER FEEDER NO.3 VOLUMETRIC BELT SCALE
C2-3220-FE-033
C2-3220-SL-013
C2-3220-DC-141
TO ATMOSPHERE
SIZE:
C2-3220-ST-123
SEC CRUSHER NO. 3 SURGE BIN RECLAIM FEEDER SKIRT
C2-3220-ST-143
SIZE:
C2-3220-ST-133
SEC CRUSHER NO. 3 FEED CHUTE
V
C2-3220-BN-023
C2-3220-CR-013
3220-AP-1038-C1A-2"-N
V
C2-3220-ST-123
SIZE: MP 1250
MOTOR: 932.00 kW
C2-3220-CR-013
SEC CRUSHER NO.3
SIZE:
MOTOR:
C2-3220-FE-033
SEC CRUSHER NO. 3 FEEDER
SIZE:
MOTOR:
C2-3220-FA-141
SEC CRUSHER SURGE BIN DUST COLLECTOR NO. 2 FAN
SIZE: 850t LIVE
MATERIAL:
CAPACITY:
TRIM:C1A
C2-3220-BN-023
SEC CRUSHER NO. 3 SURGE BIN
V
SIZE:
MOTOR: 2.24 kW
C2-3220-BL-025
SEC CRUSHER NO. 3 DUST SEAL BLOWER
AG
KM
LT
ISSUED FOR CLIENT REVIEW
23-Dec-11
B
RP
ISSUED FOR COMBINED REVIEW
23-Jun-11
A
12/23/2011
K.MUNDY
A. GUNSON
T. OH
L. TAMELIN
1/3/2012
1:27:46
PM
WBS: 3220
B
PIPING AND INSTRUMENTATION DIAGRAM
SECONDARY CRUSHING
3200-25J-032
SECONDARY CRUSHER NO. 3
C2-3220-ST-133
SIZE:
C2-3220-ST-143
SEC CRUSHER NO. 3 DISCHARGE CHUTE
C2-3220-BL-025
SIZE:
C2-3220-DC-141
SEC CRUSHER SURGE BIN DUST COLLECTOR NO. 2
C2-3220-FA-141
3220-AP-1289-C1A-2"-N
ES
V
ES
V
V
ES
ES
V
V
V
V
V ES
ES
ES
ES
ES
V
V
V
ES
V
V
V
V
V
V
V
V
V
TO ATMOSPHERE
C2-3220-FA-142
C2-3220-DC-142
V V
SIZE:
C2-3220-MD-049
FE-033 METAL DETECTOR
C2-3220-MD-049
ES
V
V
SIZE:
MOTOR:
C2-3220-FA-142
SEC CRUSHER SURGE BIN DUST COLLECTOR NO. 1 FAN
SIZE:
C2-3220-DC-142
SEC CRUSHER SURGE BIN DUST COLLECTOR NO. 1
D
4
F
B
A
3
2
1 5 6 8
E
7
C
REV.
APPROVED
CHK.
DES.
REV. DATE REVISION DESCRIPTION
CLIENT
LEAD ENGINEER
SCALE DRAWING NUMBER
CHECK DESIGN CHECK DRAWING
DESIGNED BY DRAWN BY
APPROVAL DATE
APPROVAL DATE
APPROVED
CHK.
DES.
REV. DATE REVISION DESCRIPTION REFERENCE DRAWING No.
1:100
0
1:200
5m
10m
0
5m
10m
15m
20m
1:500
10m
0
20m
30m
40m
50m
1:1000
0
100m
50m
1:20
0
0.5m
1m
1.5m
2m
0
1:25
0.5m
1m
1.5m
1:33
1/3
2.5m
2m
0
1m
2m
3m
0
1:50
1m
2m
3m
4m
5m
CAD FILE NAME: P:0CAD000SPEM**
MODEL UPDATED:
DWG. FILE UPDATED:
MANUAL CHANGES MADE: YES NO YES NO YES NO
PROJECT MANAGER
ENGINEERING MANAGER
AREA PROJECTENGINEER
REFERENCE DRAWINGS
SAFETY SHARE:
APPROVAL DATE
CONTRACT
NO.
SAFETY SHARE :
BA6CVA1.IGR
NOTICE: THIS DRAWING HAS NOT BEEN PUBLISHED AND IS THE SOLE
PROPERTY OF FLUOR AND IS LENT TO THE BORROWER FOR THEIR
CONFIDENTIAL USE ONLY, AND IN CONSIDERATION OF THE LOAN OF THIS
DRAWING, THE BORROWER PROMISES AND AGREES TO RETURN IT UPON
REQUEST AND AGREES THAT IT WILL NOT BE REPRODUCED, COPIED LENT
OR OTHERWISE DISPOSED OF DIRECTLY OR INDIRECTLY, NOR USED FOR
ANY OTHER PURPOSE OTHER THAN WHICH IT IS FURNISHED.
NONE
Apr 2011
240K-C2-
3220
03209
ZS
3220
03209
ZI
P1
ES
VENDOR
3220
03222
PDAH 3220
03223
PDAH
V
D
4
F
B
A
3
2
1 5 6 8
E
7
C
REV.
APPROVED
CHK.
DES.
REV. DATE REVISION DESCRIPTION
CLIENT
LEAD ENGINEER
SCALE DRAWING NUMBER
CHECK DESIGN CHECK DRAWING
DESIGNED BY DRAWN BY
APPROVAL DATE
APPROVAL DATE
APPROVED
CHK.
DES.
REV. DATE REVISION DESCRIPTION REFERENCE DRAWING No.
1:100
0
1:200
5m
10m
0
5m
10m
15m
20m
1:500
10m
0
20m
30m
40m
50m
1:1000
0
100m
50m
1:20
0
0.5m
1m
1.5m
2m
0
1:25
0.5m
1m
1.5m
1:33
1/3
2.5m
2m
0
1m
2m
3m
0
1:50
1m
2m
3m
4m
5m
CAD FILE NAME: P:0CAD000SPEM**
MODEL UPDATED:
DWG. FILE UPDATED:
MANUAL CHANGES MADE: YES NO YES NO YES NO
PROJECT MANAGER
ENGINEERING MANAGER
AREA PROJECTENGINEER
REFERENCE DRAWINGS
SAFETY SHARE:
APPROVAL DATE
CONTRACT
NO.
SAFETY SHARE :
BA6CVA1.IGR
NOTICE: THIS DRAWING HAS NOT BEEN PUBLISHED AND IS THE SOLE
PROPERTY OF FLUOR AND IS LENT TO THE BORROWER FOR THEIR
CONFIDENTIAL USE ONLY, AND IN CONSIDERATION OF THE LOAN OF THIS
DRAWING, THE BORROWER PROMISES AND AGREES TO RETURN IT UPON
REQUEST AND AGREES THAT IT WILL NOT BE REPRODUCED, COPIED LENT
OR OTHERWISE DISPOSED OF DIRECTLY OR INDIRECTLY, NOR USED FOR
ANY OTHER PURPOSE OTHER THAN WHICH IT IS FURNISHED.
NONE
Apr 2011
240K-C2-
A-D
M
3220
03381
II
3220
03381
XA
3220
03381
HS
3220
03382
II
3220
03382
XA
3220
03382
HS
3220
03316 A
LI
3220
03316
LI
3220
03317
LSL
3220
03317
LAL
3220
03316
LE
3220
03316
LT
3220
03310
SE
3220
03306 A
TE
3220
03306 A
TI HH, P1
H, P2
3220
03307 A
TE
HH, P1
H, P2
3220
03307 A
TI
3220
03305
ZSH
3220
03305
ZSHH
LHS
3220
03304
ZSH
RHS
3220
03304
ZSHH
3220
03305
ZAHH
LHS, P1
3220
03304
ZAHH
3220
03302
HSS
LHS
3220
03301
HSS
3220
03301
HSA
3220
03302
HSA
3220
03310
WE
RHS
3220
03310
WIT
3220
03310
WI
3220
03308 A
XS
3220
03308 B
XS
3220
03308
XA
P1
3220
03303 B
SE
FEEDER AFD DRIVE
3220
03307 B
TI
3220
03306 B
TE
3220
03307 B
TE
HH, P1
H, P2
3220
03303 B
ST
3220
03306 B
TI HH, P1
H, P2
3220
03303 B
SI
3220
03303
SDI
3220
33381
HS
J/SP
3220
03315 A
LSH
3220
33381
II
3220
03314
LE
3220
03314
LT
3220
03315 A
LAHH
3220
03314 A
LI
3220
03314
LIC
3220
03304
LSH
3220
03304
LAH
P1
3220
03303
VE
3220
03303
VT
A-D
3220
03303
VI
HH, P1
H, P2
A-D
3220
03319
LSH
3220
03319
LAH
3220
03383 G
TE
3220
03383 H
TE
3220
03383 G
TI
BRG
FRONT
H,P2
HH,P1
3220
03383 H
TI
BRG
REAR
H,P2
HH,P1
3220
03383
HS
J/SP
3220
03383
JI
3220
03383
II
3220
03383
XA
3220
33302
SE
3220
33302
SSL
3220
33302
SAL
P2
ST/SP
FAULT
J/SP
FAULT
P1
RHS, P1
LHS
A,B
EXPERT
SYSTEM
H, P1
VENDOR:
P.O.NO.:
MANUFACTURER:
P1
DUCTING
BIN CONTINUED ON
P&ID 3200-25J-032
C2-3220-ST-124
C2-3220-SL-014
C2-3220-ST-134
C2-3220-CR-014
C2-3220-ST-144
C2-3220-BL-023
C2-3220-DC-143
C2-3220-FA-143
C2-3220-FE-034
SIZE: 850t LIVE
MATERIAL:
CAPACITY:
TRIM:C1A
C2-3220-BN-024
SEC CRUSHER NO. 4 SURGE BIN
C2-3220-BN-024
H, P2
L, P2
RHS LSH
A,B
A,B
RHS
A,B
P1
P1
P1
3220
33301
LI
L, P2
HH, P1
H, P2
DUCTING
DUCTING
3220
33301
TI
3220
33301
PDI
HH, P2
H, P1
H, P2
SIZE:
C2-3220-DC-143
SEC CRUSHER SURGE BIN DUST COLLECTOR NO. 2
V V
SIZE:
C2-3220-ST-124
SEC CRUSHER NO. 4 SURGE BIN FEEDER SKIRT
SIZE:
C2-3220-SL-014
SEC CRUSHER FEEDER NO.4 VOLUMETRIC BELT SCALE
SIZE:
C2-3220-ST-134
SEC CRUSHER NO. 4 FEED CHUTE
SIZE:
C2-3220-ST-144
SEC CRUSHER NO. 4 DISCHARGE CHUTE
3220
33381
XA
3220
03305
ZAH
3220
03304
ZAH
P2
P2
A,B
A,B
TEAR
3220
03303 A
SI
3220
03303 A
SE
3220
03303 A
ST
3220
03315 A
LE
3220
03315 B
LSH
3220
03315 B
LAHH
P1
3220
03315 B
LE
C2-3240-CV-015
SEC CRUSHER PRODUCT
SEC CRUSHER DISC CONV.
NO. 1 C2-3220-CV-016
1946 3200-25J-046
DUST
DUST COLLECTOR,
C2-3220-DC-121
1421 3200-25J-047
TO ATMOSPHERE
V
V
V
ES
ES
ES
ES
ES
V
V
V
V
ES
ES
V
ES
V
ES
ES
V
T1
AG
KM
LT
ISSUED FOR CLIENT REVIEW
23-Dec-11
B
RP
ISSUED FOR COMBINED REVIEW
23-Jun-11
A
12/23/2011
K.MUNDY
A. GUNSON
T. OH
L. TAMELIN
12/23/2011
3:12:04
PM
WBS: 3220
B
PIPING AND INSTRUMENTATION DIAGRAM
SECONDARY CRUSHING
3200-25J-033
SECONDARY CRUSHER NO. 4
A,B
LHS
RHS
FAULT
COARSE SCREEN O/S
COARSE SCREEN O/S
CONVEYOR NO.1
1941 3200-25J-024
COARSE SCREEN O/S
SEC CRUSHER SURGE BIN
NO. 5
3241 3200-25J-034
SIZE:
MOTOR: 2.24 kW
C2-3220-BL-023
SEC CRUSHER NO. 4 DUST SEAL BLOWER
SIZE:
C2-3220-ST-158
SEC CRUSHER FEED CHUTE-SPARE
SIZE:
MOTOR: 932.00 kW
C2-3220-CR-014
SECONDARY CRUSHER NO.4
SIZE:
MOTOR:
C2-3220-FE-034
SEC CRUSHER NO. 4 FEEDER
SIZE:
MOTOR:
C2-3220-FA-143
SEC CRUSHER SURGE BIN DUST COLLECTOR NO. 2 FAN
V
V
V
V V
3220
03320
NS
3220
03320
NA
V
ES
C2-3220-MD-050
SIZE:
C2-3220-MD-050
FE-041 METAL DETECTOR
RHS
LHS
V
V
V
V
V
V
V
V
A,B A,B
V
V
M
3220
03384
II
3220
03384
XA
3220
03384
HS
ST/SP
FAULT
C2-3220-DC-144
C2-3220-FA-144
TO ATMOSPHERE
SIZE:
MOTOR:
C2-3220-FA-144
SEC CRUSHER SURGE BIN DUST COLLECTOR NO. 1 FAN
SIZE:
C2-3220-DC-144
SEC CRUSHER SURGE BIN DUST COLLECTOR NO. 1
3220-AP-1290-C1A-2"-N
C2-3220-BN-026
3220-AP-1037-C1A-2"-N
PLANT AIR
2994 3200-25J-017
VENDOR VENDOR
ES
3220
03309
ZS
3220
03309
ZI
P1
VENDOR
DUST
DUST COLLECTOR,
C2-3220-DC-123
4124 3200-25J-047
3220
03322
PDAH 3220
03323
PDAH
M
M
LHS
T1
A-D
VENDOR
VENDOR
FEEDER AFD DRIVE
HH, P2
H, P1
3220
03484
HS
3220
03484
XA
3220
03484
II
VENDOR
3220
03482
HS
3220
03483
II
3220
03414
LE
3220
03420
NA
3220
03420
NS
3220
03419
LAH
3220
03403 B
SI
3220
03417
LSL
3220
03407 B
TI
3220
03401
HSA
3220
03409
ZS
3220
03409
ZI
3220
03403 A
SI
3220
03407 A
TE
3220
03403 A
SE
3220
03483 G
TI
BRG
FRONT
H,P2
HH,P1
3220
3405
ZAHH
LHS, P1
3220
03406 A
TE
3220
03403 B
ST
3220
03414
LT
3220
33403
VI
HH, P1
H, P2
A-D
3220
03404
ZAH
3220
33403
VE
3220
33404
LSH
3220
03482
XA
3220
03403
SDI
3220
03410
WI
3220
33481
HS
J/SP
3220
03406 B
TE
3220
03402
HSA
LHS
A,B
3220
03404
ZSHH
A,B
3220
03416
LT
3220
03404
ZAHH
3220
3405
ZAH
3220
33401
LI
L, P2
3220
03407 B
TE
HH, P1
H, P2
3220
33402
SAL
P2
3220
03415
LSH
3220
03417
LAL
3220
03405
ZSH
RHS
3220
03415 B
LSH
3220
03483 H
TE
3220
03483
XA
3220
33481
II
3220
33401
TI
3220
03403 A
ST
3220
03481
II
3220
03410
SE
3220
03405
ZSHH
3220
03481
HS
3220
03483
JI
FAULT
3220
03414 A
LI
3220
33401
PDI
H, P2
3220
03408
XA
P1
3220
03406 A
TI HH, P1
H, P2
3220
03415 B
LE
3220
03407 A
TI HH, P1
H, P2
3220
03483 H
TI
BRG
REAR
H,P2
HH,P1
3220
03403 B
SE
3220
03408 B
XS
3220
03419
LSH
3220
03414
LIC
3220
33402
SSL
3220
03482
II
3220
33403
VT
A-D
3220
03410
WIT
3220
03408 A
XS
TEAR
3220
03401
HSS
RHS
A,B
3220
03416
LI
H, P2
L, P2
3220
03481
XA
3220
03415 B
LAH
P1
3220
03415 A
LE
3220
03404
ZSH
3220
33402
SE
3220
33481
XA
3220
33404
LAH
P1
3220
03402
HSS
A,B
3220
03416 A
LI
3220
03483 G
TE
3220
03415
LAH
P1
3220
03483
HS
J/SP
3220
03406 B
TI HH, P1
H, P2
3220
03416
LE
3220
03410
WE
PLANT AIR
2993 3200-25J-017
SEC CRUSHER PRODUCT
SEC CRUSHER DISC CONV.
NO. 2 C2-3220-CV-026
1951 3200-25J-046
DUST
DUST COLLECTOR,
C2-3220-DC-151
1422 3200-25J-047
COARSE SCREEN O/S
COARSE SCREEN O/S
CONVEYOR NO 1
3241 3200-25J-033
COARSE SCREEN O/S
SEC CRUSHER SURGE BIN
NO.6
3247 3200-25J-035
A,B A,B
FAULT
ST/SP
A,B
LHS
RHS
C2-3200-BN-027
P1
P1
RHS
LHS
LHS
LSH
H, P1
RHS
A,B
P1
P2
P2
C2-3240-CV-015
ST/SP
A,B
J/SP
FAULT
RHS, P1
BIN CONTINUED ON
P&ID 3200-25J-035
DUCTING
HH, P1
H, P2
DUCTING
DUCTING
FAULT
VENDOR:
P.O.NO.:
MANUFACTURER:
P1
FAULT
RHS
EXPERT
SYSTEM
P1
TO ATMOSPHERE
ES
C2-3220-BL-024
SIZE:
C2-3220-ST-135
SEC CRUSHER NO. 5 FEED CHUTE
C2-3220-BN-025
V
C2-3220-ST-135
V
C2-3220-ST-145
C2-3220-FA-131
C2-3220-DC-131
SIZE:
C2-3220-SL-041
SEC CRUSHER FEEDER NO.5 VOLUMETRIC BELT SCALE
SIZE:
C2-3220-ST-145
SEC CRUSHER NO. 5 DISCHARGE CHUTE
SIZE:
C2-3220-ST-125
SEC CRUSHER SURGE BIN RECLAIM FEEDER SKIRT
SIZE:
C2-3220-DC-131
SEC CRUSHER SURGE BIN DUST COLLECTOR NO. 2
C2-3220-FE-040
AG
KM
LT
ISSUED FOR CLIENT REVIEW
23-Dec-11
B
RP
ISSUED FOR COMBINED REVIEW
23-Jun-11
A
12/23/2011
K.MUNDY
A. GUNSON
T. OH
L. TAMELIN
1/3/2012
7:53:05
AM
WBS: 3220
B
PIPING AND INSTRUMENTATION DIAGRAM
SECONDARY CRUSHING
3200-25J-034
SECONDARY CRUSHER NO. 5
C2-3220-SL-041
C2-3220-ST-125
C2-3220-CR-021
SIZE:
MOTOR: 2.24 kW
C2-3220-BL-024
SEC CRUSHER NO. 5 DUST SEAL BLOWER
SIZE:
MOTOR: 932.00 kW
C2-3220-CR-021
SEC CRUSHER NO.5
SIZE:
MOTOR:
C2-3220-FA-131
SEC CRUSHER SURGE BIN DUST COLLECTOR NO. 2 FAN
SIZE:
MOTOR:
C2-3220-FE-040
SEC CRUSHER NO. 5 FEEDER
SIZE: 850t LIVE
MATERIAL:
CAPACITY:
TRIM:
C2-3220-BN-025
SEC CRUSHER NO. 5 SURGE BIN
V
V
ES
V
ES
V
V
V
V
V
ES
ES
ES
V
ES
ES
ES
ES
ES
V
V
V
3220-AP-1036-C1A-2"-N
3220-AP-1291-C1A-2"-N
V
V
V V
C2-3220-MD-051
ES
V
SIZE:
C2-3220-MD-051
FE-042 METAL DETECTOR
V
V
V
V
V
V
V
V
V
V
C2-3220-FA-130
C2-3220-DC-130
TO ATMOSPHERE
SIZE:
C2-3220-DC-130
SEC CRUSHER SURGE BIN DUST COLLECTOR NO. 1
SIZE:
MOTOR:
C2-3220-FA-130
SEC CRUSHER SURGE BIN DUST COLLECTOR NO. 1 FAN
D
4
F
B
A
3
2
1 5 6 8
E
7
C
REV.
APPROVED
CHK.
DES.
REV. DATE REVISION DESCRIPTION
CLIENT
LEAD ENGINEER
SCALE DRAWING NUMBER
CHECK DESIGN CHECK DRAWING
DESIGNED BY DRAWN BY
APPROVAL DATE
APPROVAL DATE
APPROVED
CHK.
DES.
REV. DATE REVISION DESCRIPTION REFERENCE DRAWING No.
1:100
0
1:200
5m
10m
0
5m
10m
15m
20m
1:500
10m
0
20m
30m
40m
50m
1:1000
0
100m
50m
1:20
0
0.5m
1m
1.5m
2m
0
1:25
0.5m
1m
1.5m
1:33
1/3
2.5m
2m
0
1m
2m
3m
0
1:50
1m
2m
3m
4m
5m
CAD FILE NAME: P:0CAD000SPEM**
MODEL UPDATED:
DWG. FILE UPDATED:
MANUAL CHANGES MADE: YES NO YES NO YES NO
PROJECT MANAGER
ENGINEERING MANAGER
AREA PROJECTENGINEER
REFERENCE DRAWINGS
SAFETY SHARE:
APPROVAL DATE
CONTRACT
NO.
SAFETY SHARE :
BA6CVA1.IGR
NOTICE: THIS DRAWING HAS NOT BEEN PUBLISHED AND IS THE SOLE
PROPERTY OF FLUOR AND IS LENT TO THE BORROWER FOR THEIR
CONFIDENTIAL USE ONLY, AND IN CONSIDERATION OF THE LOAN OF THIS
DRAWING, THE BORROWER PROMISES AND AGREES TO RETURN IT UPON
REQUEST AND AGREES THAT IT WILL NOT BE REPRODUCED, COPIED LENT
OR OTHERWISE DISPOSED OF DIRECTLY OR INDIRECTLY, NOR USED FOR
ANY OTHER PURPOSE OTHER THAN WHICH IT IS FURNISHED.
NONE
Apr 2011
240K-C2-
DUST
DUST COLLECTOR,
C2-3220-DC-152
4131 3200-25J-047
3220
03422
PDAH
3220
03423
PDAH
D
4
F
B
A
3
2
1 5 6 8
E
7
C
REV.
APPROVED
CHK.
DES.
REV. DATE REVISION DESCRIPTION
CLIENT
LEAD ENGINEER
SCALE DRAWING NUMBER
CHECK DESIGN CHECK DRAWING
DESIGNED BY DRAWN BY
APPROVAL DATE
APPROVAL DATE
APPROVED
CHK.
DES.
REV. DATE REVISION DESCRIPTION REFERENCE DRAWING No.
1:100
0
1:200
5m
10m
0
5m
10m
15m
20m
1:500
10m
0
20m
30m
40m
50m
1:1000
0
100m
50m
1:20
0
0.5m
1m
1.5m
2m
0
1:25
0.5m
1m
1.5m
1:33
1/3
2.5m
2m
0
1m
2m
3m
0
1:50
1m
2m
3m
4m
5m
CAD FILE NAME: P:0CAD000SPEM**
MODEL UPDATED:
DWG. FILE UPDATED:
MANUAL CHANGES MADE: YES NO YES NO YES NO
PROJECT MANAGER
ENGINEERING MANAGER
AREA PROJECTENGINEER
REFERENCE DRAWINGS
SAFETY SHARE:
APPROVAL DATE
CONTRACT
NO.
SAFETY SHARE :
BA6CVA1.IGR
NOTICE: THIS DRAWING HAS NOT BEEN PUBLISHED AND IS THE SOLE
PROPERTY OF FLUOR AND IS LENT TO THE BORROWER FOR THEIR
CONFIDENTIAL USE ONLY, AND IN CONSIDERATION OF THE LOAN OF THIS
DRAWING, THE BORROWER PROMISES AND AGREES TO RETURN IT UPON
REQUEST AND AGREES THAT IT WILL NOT BE REPRODUCED, COPIED LENT
OR OTHERWISE DISPOSED OF DIRECTLY OR INDIRECTLY, NOR USED FOR
ANY OTHER PURPOSE OTHER THAN WHICH IT IS FURNISHED.
NONE
Apr 2011
240K-C2-
A-D
M
3220
03581
II
3220
03581
XA
3220
03581
HS
3220
03582
II
3220
03582
XA
3220
03582
HS
3220
03516 B
LI
3220
03516 A
LI
3220
03517
LSL
3220
03517
LAL
3220
03516
LE
3220
03516
LT
3220
03510
SE
3220
03506 A
TE
3220
03506 A
TI HH, P1
H, P2
3220
03507 A
TE
HH, P1
H, P2
3220
03507 A
TI
3220
03505
ZSH
3220
03505
ZSHH
3220
03504
ZSH
3220
03504
ZSHH
3220
03505
ZAHH
LHS, P1
3220
03504
ZAHH
3220
03502
HSS
LHS
3220
03501
HSS
3220
03502
HSA
3220
03501
HSA
3220
03510
WE
RHS
3220
03510
WIT
3220
03510
WI
3220
03508 A
XS
3220
03508 B
XS
3220
03508
XA
P1
3220
03503 B
SE
FEEDER AFD DRIVE
3220
03507 B
TI
3220
03506 B
TE
3220
03507 B
TE
HH, P1
H, P2
3220
03503 B
ST
3220
03506 B
TI HH, P1
H, P2
3220
03503 B
SI
3220
03503
SDI
3220
33581
HS
J/SP
3220
03515 A
LSH
3220
33581
II
3220
03514
LE
3220
03514
LT
3220
03515 A
LAH
3220
03514 A
LI
3220
03514
LIC
3220
33504
LSH
3220
33504
LAH
P1
3220
33503
VE
3220
33503
VT
A-D
3220
33503
VI
HH, P1
H, P2
A-D
3220
03519
LSH
3220
03519
LAH
3220
03583 G
TE
3220
03583 H
TE
3220
03583 G
TI
BRG
FRONT
H,P2
HH,P1
3220
03583 H
TI
BRG
REAR
H,P2
HH,P1
3220
03583
HS
J/SP
3220
03583
JI
3220
03583
II
3220
03583
XA
3220
33502
SE
3220
33502
SSL
3220
33502
SAL
P2
ST/SP
FAULT
J/SP
FAULT
P1
RHS, P1
LHS
A,B
EXPERT
SYSTEM
H, P1
VENDOR:
P.O.NO.:
MANUFACTURER:
P1
DUCTING
BIN CONTINUED ON
P&ID 3200-25J-034
3220-AP1035-C1A-2"-N
C2-3220-ST-126
C2-3220-SL-042
C2-3220-ST-136
C2-3220-CR-022
C2-3220-ST-146
C2-3220-BL-022
C2-3220-DC-132
C2-3220-FA-132
C2-3220-FE-041
SIZE:850t LIVE
MATERIAL:
CAPACITY:
TRIM:C1A
C2-3220-BN-026
SEC CRUSHER NO. 6 SURGE BIN
C2-3220-BN-026
H, P2
L, P2
RHS
RHS LSH
A,B
A,B
RHS
A,B
P1
P1
P1
3220
33501
LI
L, P2
HH, P1
H, P2
DUCTING
DUCTING
3220
33501
TI
3220
33501
PDI
HH, P2
H, P1
H, P2
SIZE:
C2-3220-DC-132
SEC CRUSHER SURGE BIN DUST COLLECTOR NO. 2
V V
SIZE:
C2-3220-ST-126
SEC CRUSHER SURGE BIN FEEDER SKIRT
SIZE:
C2-3220-SL-042
SEC CRUSHER FEEDER NO.6 VOLUMETRIC BELT SCALE
SIZE:
C2-3220-ST-136
SEC CRUSHER NO. 6 FEED CHUTE
SIZE:
C2-3220-ST-146
SEC CRUSHER NO. 6 DISCHARGE CHUTE
3220
33581
XA
FAULT
3220
03505
ZAH
3220
03504
ZAH
P2
P2
A,B
A,B
TEAR
3220
03503 A
SI
3220
03503 A
SE
3220
03503 A
ST
3220
03515 A
LE
3220
03515 B
LSH
3220
03515 B
LAH
P1
3220
03515 B
LE
C2-3240-CV-015
TO ATMOSPHERE
SEC CRUSHER PRODUCT
SEC CRUSHER DISC CONV
NO. 2 C2-3220-CV-026
1956 3200-25J-046
DUST
DUST COLLECTOR,
C2-3220-DC-151
1423 3200-25J-047
V
V
V
ES
ES
ES
ES
V
V
ES
ES
ES
V
V
V
ES
V
ES
V
ES
V
T1
AG
KM
LT
ISSUED FOR CLIENT REVIEW
23-Dec-11
B
RP
ISSUED FOR COMBINED REVIEW
23-Jun-11
A
12/23/2011
K.MUNDY
A. GUNSON
T. OH
L. TAMELIN
1/3/2012
7:40:22
AM
WBS: 3220
B
PIPING AND INSTRUMENTATION DIAGRAM
SECONDARY CRUSHING
3200-25J-035
SECONDARY CRUSHER NO. 6
LHS
A,B
LHS
RHS
V
FAULT
COARSE SCREEN O/S
COARSE SCREEN O/S
CONVEYOR NO. 1
3247 3200-25J-034
SIZE:
MOTOR: 2.24 kW
C2-3220-BL-022
SEC CRUSHER NO. 6 DUST SEAL BLOWER
SIZE:
MOTOR:
C2-3220-CR-022
SECONDARY CRUSHER NO.6
SIZE:
MOTOR:
C2-3220-FE-041
SEC CRUSHER NO. 6 FEEDER
SIZE:
MOTOR:
C2-3220-FA-132
SEC CRUSHER SURGE BIN DUST COLLECTOR NO. 2 FAN
V V
V
V
RHS
LHS
V
V
3220
03520
NS
3220
03520
NA
V
ES
C2-3220-MD-052
SIZE:
C2-3220-MD-052
FE-043 METAL DETECTOR
V
V
V
V
V
V
V
V
A,B A,B
M
3220
03584
II
3220
03584
XA
3220
03584
HS
ST/SP
FAULT
C2-3220-DC-133
C2-3220-FA-133
TO ATMOSPHERE
SIZE:
MOTOR:
C2-3220-FA-133
SEC CRUSHER SURGE BIN DUST COLLECTOR NO. 1 FAN
SIZE:
C2-3220-DC-133
SEC CRUSHER SURGE BIN DUST COLLECTOR NO. 1
3220-AP-1292-C1A-2"-N
PLANT AIR
2992 3200-25J-017
VENDOR
VENDOR
BIN CONTINUED ON
P&ID 3200-25J-038
DUST
DUST COLLECTOR,
C2-3220-DC-152
4136 3200-25J-047
VENDOR
3220
03509
ZI
3220
03509
ZS
ES
P1
3220
03522
PDAH
3220
03523
PDAH
3220-FA-081
3220
33613
PI
3220
33602
PI
H,P2
3220
33684
HS
3220
33621
ZI
3220
33683
II
3220
33604
TI
H,P2
3220
33685
XA
3220
33685
II
3220
33684
II
3220
33615
TE
3220
33681
HS
3220
33615
TIT
3220
33682
HS
3220
33683
XA
3220
33683
HS
3220
33685
HS
3220
33616
TE
3220
33623
LI
L,P2
LL,P2
OIL HEATERS (3)
3220
33684
XA
3220
33616
TIT
3220
33610
ZI
3220
33605
PDI
H,P2
3220
33612
TI
3220
33626
TI
3220
33616
TI
H,P2
HH,P2
3220
33681
II
3220
33682
XA
3220
33614
TI
3220
33611
TI ECCENTRIC
BUSHING
3220
33622
ZI
3220
33624
XA FAULT
3220
33625
PDI
LUBE OIL FILTER
3220
33601
PI
L,P2
3220
33615
TI
H,P2
HH,P2
3220
33681
XA
3220
33603
LI
3220
33682
II
VENDOR:
P.O. NO.:
MANUFACTURER:
SEE VENDOR DWG NO.:
OP/CL
PUMP #1 DISCH. VALVE
FAULT
3220-FA-082
SECONDARY CRUSHER NO.1
HYDRAULIC POWER UNIT
FAULT
OP/CL
PUMP #2 DISCH VALVE
VENDOR LOAD
CONTROL PANEL
FAULT
FAULT
H,P2
HH,P2
VENDOR:
P.O. NO.:
MANUFACTURER:
SEE VENDOR DWG NO.:
A,B,C
CLAMPING CIRCUIT
PRESSURE
HYDRAULIC
OIL
SECONDARY CRUSHER NO.1
LUBE OIL COOLER
HYDRAULIC OIL
TANK LEVEL
J/SP
LUBE TANK
OIL LEVEL
J/SP
VENDOR:
P.O. NO.:
MANUFACTURER:
SEE VENDOR DWG NO.:
DIRTY
FILTER
3220-HY-021
J/SP
VENDOR:
P.O. NO.:
MANUFACTURER:
SEE VENDOR DWG NO.:
3220-PP-922
FAULT
SECONDARY CRUSHER NO.1
LUBE SYSTEM
3220-PP-921
COUNTERSHAFT
BEARING
TRAMP RELEASE
PRESSURE
SECONDARY CRUSHER NO.1
L,P2
J/SP
SOCKET
LINER
(6 HYDRAULIC HOSES BY VENDOR)
BOWL POSITION
H,P2
HH,P2
SUPPLY
OIL
H,P2
VENDOR PLC
OP/CL
J/SP
H,P2
HH,P2
H,P2
HH,P2
C2-3220-LU-021
C2-3220-HY-023
C2-3220-CK-021
SIZE:
MOTOR:
C2-3220-CK-021
SECONDARY CRUSHER NO.1 LUBE OIL COOLER
AG
KM
LT
ISSUED FOR CLIENT REVIEW
23-Dec-11
B
RP
ISSUED FOR COMBINED REVIEW
23-Jun-11
A
12/23/2011
K.MUNDY
A. GUNSON
T. OH
L. TAMELIN
12/23/2011
3:20:49
PM
WBS: 3220
B
PIPING AND INSTRUMENTATION DIAGRAM
SECONDARY CRUSHING
3200-25J-036
CRUSHER NO. 1 LUBE SYSTEMS
3220-OLL-1024-S1A-3"-N
SIZE:
MOTOR:
C2-3220-HY-023
SECONDARY CRUSHER NO.1 HYDRAULIC SET SYSTEM
V
3220-OLL-1025-S1A-3"-N
SIZE:
MOTOR:
C2-3220-LU-021
SECONDARY CRUSHER NO.1 LUBE SYSTEM
3220-OLL-1023-S1A-8"-N
V
V
V
D
4
F
B
A
3
2
1 5 6 8
E
7
C
REV.
APPROVED
CHK.
DES.
REV. DATE REVISION DESCRIPTION
CLIENT
LEAD ENGINEER
SCALE DRAWING NUMBER
CHECK DESIGN CHECK DRAWING
DESIGNED BY DRAWN BY
APPROVAL DATE
APPROVAL DATE
APPROVED
CHK.
DES.
REV. DATE REVISION DESCRIPTION REFERENCE DRAWING No.
1:100
0
1:200
5m
10m
0
5m
10m
15m
20m
1:500
10m
0
20m
30m
40m
50m
1:1000
0
100m
50m
1:20
0
0.5m
1m
1.5m
2m
0
1:25
0.5m
1m
1.5m
1:33
1/3
2.5m
2m
0
1m
2m
3m
0
1:50
1m
2m
3m
4m
5m
CAD FILE NAME: P:0CAD000SPEM**
MODEL UPDATED:
DWG. FILE UPDATED:
MANUAL CHANGES MADE: YES NO YES NO YES NO
PROJECT MANAGER
ENGINEERING MANAGER
AREA PROJECTENGINEER
REFERENCE DRAWINGS
SAFETY SHARE:
APPROVAL DATE
CONTRACT
NO.
SAFETY SHARE :
BA6CVA1.IGR
NOTICE: THIS DRAWING HAS NOT BEEN PUBLISHED AND IS THE SOLE
PROPERTY OF FLUOR AND IS LENT TO THE BORROWER FOR THEIR
CONFIDENTIAL USE ONLY, AND IN CONSIDERATION OF THE LOAN OF THIS
DRAWING, THE BORROWER PROMISES AND AGREES TO RETURN IT UPON
REQUEST AND AGREES THAT IT WILL NOT BE REPRODUCED, COPIED LENT
OR OTHERWISE DISPOSED OF DIRECTLY OR INDIRECTLY, NOR USED FOR
ANY OTHER PURPOSE OTHER THAN WHICH IT IS FURNISHED.
NONE
Apr 2011
240K-C2-
C2-3220-CR-011
SIZE:
C2-3220-CR-011
SEC CRUSHER NO. 1
FAULT
OIL HEATERS (3)
3220-FA-083
3220
33714
TI
3220
33785
II
3220
33781
HS
3220
33723
LI
L,P2
LL,P2
3220
33716
TE
3220
33721
ZI
3220
33784
XA
3220
33782
II
3220
33781
XA
3220
33726
TI
A,B,C
3220
33710
ZI
3220
33781
II
3220
33711
TI ECCENTRIC
BUSHING
3220
33782
HS
3220
33703
LI
3220
33713
PI
3220
33716
TIT
3220
33785
HS
3220
33724
XA
3220
33715
TIT
3220
33725
PDI
LUBE OIL FILTER
3220
33783
HS
3220
33705
PDI
H,P2
3220
33712
TI
3220
33783
II
3220
33782
XA
3220
33783
XA
3220
33784
HS
3220
33722
ZI
3220
33784
II
3220
33704
TI
H,P2
3220
33785
XA
3220
33716
TI
H,P2
HH,P2
3220
33702
PI
H,P2
3220
33715
TE
3220
33701
PI
L,P2
3220
33715
TI
H,P2
HH,P2
SECONDARY CRUSHER NO.2
A,B,C
J/SP
OP/CL
J/SP
VENDOR:
P.O. NO.:
MANUFACTURER:
SEE VENDOR DWG NO.:
FAULT
H,P2
HH,P2
(6 HYDRAULIC HOSES BY VENDOR)
J/SP
SECONDARY CRUSHER NO.2
LUBE OIL COOLER
BOWL POSITION
H,P2
HH,P2
L,P2
FAULT
SOCKET
LINER
TRAMP RELEASE
PRESSURE
3220-FA-084
COUNTERSHAFT
BEARING
VENDOR:
P.O. NO.:
MANUFACTURER:
SEE VENDOR DWG NO.:
H,P2
HH,P2
SUPPLY
OIL
LUBE TANK
OIL LEVEL
HYDRAULIC
OIL
FAULT
HYDRAULIC OIL
TANK LEVEL
H,P2
HH,P2
3220-PP-921
SECONDARY CRUSHER NO.2
LUBE SYSTEM
FAULT
VENDOR:
P.O. NO.:
MANUFACTURER:
SEE VENDOR DWG NO.:
VENDOR:
P.O. NO.:
MANUFACTURER:
SEE VENDOR DWG NO.:
OP/CL
PUMP #1 DISCH. VALVE
3220-HY-021
H,P2
CLAMPING CIRCUIT
PRESSURE
DIRTY
FILTER
SECONDARY CRUSHER NO.2
HYDRAULIC POWER UNIT
J/SP
FAULT
J/SP
OP/CL
PUMP #2 DISCH VALVE
3220-PP-922
C2-3220-LU-022
C2-3220-HY-024
AG
KM
LT
ISSUED FOR CLIENT REVIEW
23-Dec-11
B
RP
ISSUED FOR COMBINED REVIEW
23-Jun-11
A
12/23/2011
K.MUNDY
A.GUNSON
T. OH
L.TAMELIN
1/3/2012
1:37:54
PM
WBS: 3220
B
PIPING AND INSTRUMENTATION DIAGRAM
SECONDARY CRUSHING
3200-25J-037
CRUSHER NO. 2 LUBE SYSTEMS
C2-3220-CK-022
SIZE:
MOTOR:
C2-3220-CK-022
SECONDARY CRUSHER NO.2 LUBE OIL COOLER
3220-OLL-1027-S1A-3"-N
?
SIZE:
MOTOR:
C2-3220-HY-024
SECONDARY CRUSHER NO.2 HYDRAULIC SET SYSTEM
?
?
3220-OLL-1026-S1A-8"-N
?
SIZE:
MOTOR:
C2-3220-LU-022
SECONDARY CRUSHER NO.2 LUBE SYSTEM
3220-OLL-1028-S1A-3"-N
D
4
F
B
A
3
2
1 5 6 8
E
7
C
REV.
APPROVED
CHK.
DES.
REV. DATE REVISION DESCRIPTION
CLIENT
LEAD ENGINEER
SCALE DRAWING NUMBER
CHECK DESIGN CHECK DRAWING
DESIGNED BY DRAWN BY
APPROVAL DATE
APPROVAL DATE
APPROVED
CHK.
DES.
REV. DATE REVISION DESCRIPTION REFERENCE DRAWING No.
1:100
0
1:200
5m
10m
0
5m
10m
15m
20m
1:500
10m
0
20m
30m
40m
50m
1:1000
0
100m
50m
1:20
0
0.5m
1m
1.5m
2m
0
1:25
0.5m
1m
1.5m
1:33
1/3
2.5m
2m
0
1m
2m
3m
0
1:50
1m
2m
3m
4m
5m
CAD FILE NAME: P:0CAD000SPEM**
MODEL UPDATED:
DWG. FILE UPDATED:
MANUAL CHANGES MADE: YES NO YES NO YES NO
PROJECT MANAGER
ENGINEERING MANAGER
AREA PROJECTENGINEER
REFERENCE DRAWINGS
SAFETY SHARE:
APPROVAL DATE
CONTRACT
NO.
SAFETY SHARE :
BA6CVA1.IGR
NOTICE: THIS DRAWING HAS NOT BEEN PUBLISHED AND IS THE SOLE
PROPERTY OF FLUOR AND IS LENT TO THE BORROWER FOR THEIR
CONFIDENTIAL USE ONLY, AND IN CONSIDERATION OF THE LOAN OF THIS
DRAWING, THE BORROWER PROMISES AND AGREES TO RETURN IT UPON
REQUEST AND AGREES THAT IT WILL NOT BE REPRODUCED, COPIED LENT
OR OTHERWISE DISPOSED OF DIRECTLY OR INDIRECTLY, NOR USED FOR
ANY OTHER PURPOSE OTHER THAN WHICH IT IS FURNISHED.
NONE
Apr 2011
240K-C2-
C2-3220-CR-012
SIZE:
C2-3220-CR-012
SEC CRUSHER NO.2
D
4
F
B
A
3
2
1 5 6 8
E
7
C
REV.
APPROVED
CHK.
DES.
REV. DATE REVISION DESCRIPTION
CLIENT
LEAD ENGINEER
SCALE DRAWING NUMBER
CHECK DESIGN CHECK DRAWING
DESIGNED BY DRAWN BY
APPROVAL DATE
APPROVAL DATE
APPROVED
CHK.
DES.
REV. DATE REVISION DESCRIPTION REFERENCE DRAWING No.
1:100
0
1:200
5m
10m
0
5m
10m
15m
20m
1:500
10m
0
20m
30m
40m
50m
1:1000
0
100m
50m
1:20
0
0.5m
1m
1.5m
2m
0
1:25
0.5m
1m
1.5m
1:33
1/3
2.5m
2m
0
1m
2m
3m
0
1:50
1m
2m
3m
4m
5m
CAD FILE NAME: P:0CAD000SPEM**
MODEL UPDATED:
DWG. FILE UPDATED:
MANUAL CHANGES MADE: YES NO YES NO YES NO
PROJECT MANAGER
ENGINEERING MANAGER
AREA PROJECTENGINEER
REFERENCE DRAWINGS
SAFETY SHARE:
APPROVAL DATE
CONTRACT
NO.
SAFETY SHARE :
BA6CVA1.IGR
NOTICE: THIS DRAWING HAS NOT BEEN PUBLISHED AND IS THE SOLE
PROPERTY OF FLUOR AND IS LENT TO THE BORROWER FOR THEIR
CONFIDENTIAL USE ONLY, AND IN CONSIDERATION OF THE LOAN OF THIS
DRAWING, THE BORROWER PROMISES AND AGREES TO RETURN IT UPON
REQUEST AND AGREES THAT IT WILL NOT BE REPRODUCED, COPIED LENT
OR OTHERWISE DISPOSED OF DIRECTLY OR INDIRECTLY, NOR USED FOR
ANY OTHER PURPOSE OTHER THAN WHICH IT IS FURNISHED.
NONE
Apr 2011
240K-C2-
AG
KM
LT
ISSUED FOR CLIENT REVIEW
23-Dec-11
B
NOT USED
A
12/23/2011
K.MUNDY
A.GUNSON
T. OH
L.TAMELIN
1/3/2012
8:22:56
AM
WBS: 3220
B
PIPING AND INSTRUMENTATION DIAGRAM
SECONDARY CRUSHING
3200-25J-038
SECONDARY CRUSHER NO.7
A-D
M
3220
03881
II
3220
03881
XA
3220
03881
HS
3220
03882
II
3220
03882
XA
3220
03882
HS
3220
03816 A
LI
3220
03816 A
LI
3220
03817
LSL
3220
03817
LAL
3220
03816
LE
3220
03816
LT
3220
03810
SE
3220
03806 A
TE
3220
03806 A
TI HH, P1
H, P2
3220
03807 A
TE
HH, P1
H, P2
3220
03807 A
TI
3220
03805
ZSH
3220
03805
ZSHH
3220
03804
ZSH
3220
03804
ZSHH
3220
03805
ZAHH
LHS, P1
3220
03804
ZAHH
3220
03802
HSS
LHS
3220
03801
HSS
3220
03802
HSA
3220
03801
HSA
3220
03810
WE
RHS
3220
03810
WIT
3220
03810
WI
3220
03808 A
XS
3220
03808 B
XS
3220
03808
XA
P1
3220
03803 B
SE
FEEDER AFD DRIVE
3220
03807 B
TI
3220
03806 B
TE
3220
03807 B
TE
HH, P1
H, P2
3220
03803 B
ST
3220
03806 B
TI HH, P1
H, P2
3220
03803 B
SI
3220
03803
SDI
3220
33881
HS
J/SP
3220
03815 A
LSH
3220
33881
II
3220
03814
LE
3220
03814
LT
3220
03815 A
LAH
3220
03814 A
LI
3220
03814
LIC
3220
33804
LSH
3220
33804
LAH
P1
3220
33803
VE
3220
33803
VT
A-D
3220
33803
VI
HH, P1
H, P2
A-D
3220
03819
LSH
3220
03819
LAH
3220
03883 G
TE
3220
03883 H
TE
3220
03883 G
TI
BRG
FRONT
H,P2
HH,P1
3220
03883 H
TI
BRG
REAR
H,P2
HH,P1
3220
03883
HS
J/SP
3220
03883
JI
3220
03883
II
3220
03883
XA
3220
33802
SE
3220
33802
SSL
3220
33802
SAL
P2
ST/SP
FAULT
J/SP
FAULT
P1
RHS, P1
LHS
A,B
EXPERT
SYSTEM
H, P1
VENDOR:
P.O.NO.:
MANUFACTURER:
P1
DUCTING
BIN CONTINUED ON
P&ID 3200-25J-035
3220-AP1322-C1A-2"-N
C2-3220-ST-127
C2-3220-SL-043
C2-3220-ST-137
C2-3220-CR-023
C2-3220-ST-147
C2-3220-BL-026
C2-3220-DC-134
C2-3220-FA-134
C2-3220-FE-042
SIZE:700t LIVE
MATERIAL:
CAPACITY:
TRIM:C1A
C2-3220-BN-027
SEC CRUSHER NO. 7 SURGE BIN
C2-3220-BN-027
H, P2
L, P2
RHS
RHS LHS
A,B
A,B
RHS
A,B
P1
P1
P1
3220
33801
LI
L, P2
HH, P1
H, P2
DUCTING
DUCTING
3220
33801
TI
3220
33801
PDI
HH, P2
H, P1
H, P2
SIZE:
C2-3220-DC-134
SEC CRUSHER NO. 7 SURGE BIN DUST COLLECTOR 2
V V
SIZE:
C2-3220-ST-127
SEC CRUSHER NO. 7 SURGE BIN RECLAIM FEEDER SKIRT
SIZE:
C2-3220-SL-043
SEC CRUSHER NO. 7 FEEDER 042 BELT SCALE
SIZE:
C2-3220-ST-137
SEC CRUSHER NO. 7 FEED CHUTE
SIZE:
C2-3220-ST-147
SEC CRUSHER NO. 7 DISCHARGE CHUTE
3220
33881
XA
FAULT
3220
03805
ZAH
3220
03804
ZAH
P2
P2
A,B
A,B
TEAR
3220
03803 A
SI
3220
03803 A
SE
3220
03803 A
ST
3220
03815 A
LE
3220
03815 B
LSH
3220
03815 B
LAH
P1
3220
03815 B
LE
TO ATMOSPHERE
V
V
V
ES
ES
ES
ES
V
V
ES
ES
ES
V
V
V
ES
V
ES
V
ES
V
T1
LHS
A,B
LHS
RHS
V
FAULT
SIZE:
MOTOR:
C2-3220-BL-026
SEC CRUSHER NO. 7 DUST SEAL BLOWER
SIZE:
MOTOR:
C2-3220-CR-023
SEC CRUSHER NO.7
SIZE:
MOTOR:
C2-3220-FE-042
SEC CRUSHER NO. 7 FEEDER
SIZE:
MOTOR:
C2-3220-FA-134
SEC CRUSHER NO. 7 SURGE BIN DUST COLLECTOR 2 FAN
V V
V
V
RHS
LHS
V
V
3220
03820
NS
3220
03820
NA
V
ES
C2-3220-MD-053
SIZE:
C2-3220-MD-053
FE-042 METAL DETECTOR
V
V
V
V
V
V
V
V
A,B A,B
M
3220
03884
II
3220
03884
XA
3220
03884
HS
ST/SP
FAULT
C2-3220-DC-135
C2-3220-FA-135
TO ATMOSPHERE
SIZE:
MOTOR:
C2-3220-FA-135
SEC CRUSHER NO. 7 SURGE BIN DUST COLLECTOR FAN 1
SIZE:
C2-3220-DC-135
SEC CRUSHER NO. 7 SURGE BIN DUST COLLECTOR 1
3220-AP-1323-C1A-2"-N
BIN CONTINUED ON
P&ID 3200-25J-039
H,P1
PLANT AIR
3767 3200-25J-017
COARSE SCREENING O/S
COARSE SCREENING O/S
CONVEYOR NO.2,
3768 3200-25J-034
DUST
DUST COLLECTOR,
C2-3220-DC-151
3769 3200-25J-047
SEC CRUSHER PRODUCT
SEC CRUSHER NO. 7 DISC.
CONV. NO. 2, C2-3220-CV-026
3770 3200-25J-046
C2-3240-CV-025
3220
03809
ZS
3220
03809
ZI
P1
VENDOR VENDOR
ES
VENDOR
DUST
DUST COLLECTOR,
C2-3220-DC-152
4148 3200-25J-047
3220
03822
PDAH
3220
03823
PDAH
D
4
F
B
A
3
2
1 5 6 8
E
7
C
REV.
APPROVED
CHK.
DES.
REV. DATE REVISION DESCRIPTION
CLIENT
LEAD ENGINEER
SCALE DRAWING NUMBER
CHECK DESIGN CHECK DRAWING
DESIGNED BY DRAWN BY
APPROVAL DATE
APPROVAL DATE
APPROVED
CHK.
DES.
REV. DATE REVISION DESCRIPTION REFERENCE DRAWING No.
1:100
0
1:200
5m
10m
0
5m
10m
15m
20m
1:500
10m
0
20m
30m
40m
50m
1:1000
0
100m
50m
1:20
0
0.5m
1m
1.5m
2m
0
1:25
0.5m
1m
1.5m
1:33
1/3
2.5m
2m
0
1m
2m
3m
0
1:50
1m
2m
3m
4m
5m
CAD FILE NAME: P:0CAD000SPEM**
MODEL UPDATED:
DWG. FILE UPDATED:
MANUAL CHANGES MADE: YES NO YES NO YES NO
PROJECT MANAGER
ENGINEERING MANAGER
AREA PROJECTENGINEER
REFERENCE DRAWINGS
SAFETY SHARE:
APPROVAL DATE
CONTRACT
NO.
SAFETY SHARE :
BA6CVA1.IGR
NOTICE: THIS DRAWING HAS NOT BEEN PUBLISHED AND IS THE SOLE
PROPERTY OF FLUOR AND IS LENT TO THE BORROWER FOR THEIR
CONFIDENTIAL USE ONLY, AND IN CONSIDERATION OF THE LOAN OF THIS
DRAWING, THE BORROWER PROMISES AND AGREES TO RETURN IT UPON
REQUEST AND AGREES THAT IT WILL NOT BE REPRODUCED, COPIED LENT
OR OTHERWISE DISPOSED OF DIRECTLY OR INDIRECTLY, NOR USED FOR
ANY OTHER PURPOSE OTHER THAN WHICH IT IS FURNISHED.
NONE
Apr 2011
240K-C2-
A-D
M
3220
03981
II
3220
03981
XA
3220
03981
HS
3220
03982
II
3220
03982
XA
3220
03982
HS
3220
03916 A
LI
3220
03916 A
LI
3220
03917
LSL
3220
03917
LAL
3220
03916
LE
3220
03916
LT
3220
03910
SE
3220
03906 A
TE
3220
03906 A
TI HH, P1
H, P2
3220
03907 A
TE
HH, P1
H, P2
3220
03907 A
TI
3220
03905
ZSH
3220
03905
ZSHH
3220
03904
ZSH
3220
03904
ZSHH
3220
03905
ZAHH
LHS, P1
3220
03904
ZAHH
3220
03902
HSS
LHS
3220
03901
HSS
3220
03902
HSA
3220
03902
HSA
3220
03910
WE
RHS
3220
03910
WIT
3220
03910
WI
3220
03908 A
XS
3220
03908 B
XS
3220
03908
XA
P1
3220
03903 B
SE
FEEDER AFD DRIVE
3220
03907 B
TI
3220
03906 B
TE
3220
03907 B
TE
HH, P1
H, P2
3220
03903 B
ST
3220
03906 B
TI HH, P1
H, P2
3220
03903 B
SI
3220
03903
SDI
3220
33981
HS
J/SP
3220
03915 A
LSH
3220
33981
II
3220
03914
LE
3220
03914
LT
3220
03915 A
LAH
3220
03914 A
LI
3220
03914
LIC
3220
33904
LSH
3220
33904
LAH
P1
3220
33903
VE
3220
33903
VT
A-D
3220
33903
VI
HH, P1
H, P2
A-D
3220
03919
LSH
3220
03919
LAH
3220
03983 G
TE
3220
03983 H
TE
3220
03983 G
TI
BRG
FRONT
H,P2
HH,P1
3220
03983 H
TI
BRG
REAR
H,P2
HH,P1
3220
03983
HS
J/SP
3220
03983
JI
3220
03983
II
3220
03983
XA
3220
33902
SE
3220
33902
SSL
3220
33902
SAL
P2
ST/SP
FAULT
J/SP
FAULT
P1
RHS, P1
LHS
A,B
EXPERT
SYSTEM
H, P1
VENDOR:
P.O.NO.:
MANUFACTURER:
P1
DUCTING
BIN CONTINUED ON
P&ID 3200-25J-038
C2-3220-ST-128
C2-3220-SL-044
C2-3220-ST-138
C2-3220-CR-024
C2-3220-ST-148
C2-3220-BL-027
C2-3220-DC-136
C2-3220-FA-136
C2-3220-FE-043
SIZE:700 t LIVE
MATERIAL:
CAPACITY:
TRIM:C1A
C2-3220-BN-028
SEC CRUSHER NO. 8 SURGE BIN
C2-3220-BN-028
H, P2
L, P2
RHS
RHS LHS
A,B
A,B
RHS
A,B
P1
P1
P1
3220
33901
LI
L, P2
HH, P1
H, P2
DUCTING
DUCTING
3220
33901
TI
3220
33901
PDI
HH, P2
H, P1
H, P2
SIZE:
C2-3220-DC-136
SEC CRUSHER NO. 8 SURGE BIN DUST COLLECTOR 1
V V
SIZE:
C2-3220-ST-128
SEC CRUSHER NO. 8 SURGE BIN RECLAIM FEEDER SKIRT
SIZE:
C2-3220-SL-044
SEC CRUSHER NO. 8 FEEDER 043 BELT SCALE
SIZE:
C2-3220-ST-138
SEC CRUSHER NO. 8 FEED CHUTE
SIZE:
C2-3220-ST-148
SEC CRUSHER NO. 8 DISCHARGE CHUTE
3220
33981
XA
FAULT
3220
03905
ZAH
3220
03904
ZAH
P2
P2
A,B
A,B
TEAR
3220
03903 A
SI
3220
03903 A
SE
3220
03903 A
ST
3220
03915 A
LE
3220
03915 B
LSH
3220
03915 B
LAH
P1
3220
03915 B
LE
TO ATMOSPHERE
V
V
V
ES
ES
ES
ES
V
V
ES
ES
ES
V
V
V
ES
V
ES
V
ES
V
T1
LHS
A,B
LHS
RHS
V
FAULT
SIZE:
MOTOR:
C2-3220-BL-027
SEC CRUSHER NO. 8 DUST SEAL BLOWER
SIZE:
MOTOR:
C2-3220-CR-024
SEC CRUSHER NO.8
SIZE:
MOTOR:
C2-3220-FE-043
SEC CRUSHER NO. 8 FEEDER
SIZE:
MOTOR:
C2-3220-FA-136
SEC CRUSHER NO. 8 SURGE BIN DUST COLLECTOR 1 FAN
V V
V
V
RHS
LHS
V
V
3220
03920
NS
3220
03920
NA
ES
C2-3220-MD-054
SIZE:
C2-3220-MD-054
FE-043 METAL DETECTOR
V
V
V
V
V
V
V
V
A,B A,B
M
3220
03984
II
3220
03984
XA
3220
03984
HS
ST/SP
FAULT
C2-3220-DC-137
C2-3220-FA-137
TO ATMOSPHERE
SIZE:
MOTOR:
C2-3220-FA-137
SEC CRUSHER NO. 8 SURGE BIN DUST COLLECTOR 2 FAN
SIZE:
C2-3220-DC-137
SEC CRUSHER NO. 8 SURGE BIN DUST COLLECTOR 2
3220-AP-1325-C1A-2"-N
H,P1
AG
KM
LT
ISSUED FOR CLIENT REVIEW
23-Dec-11
B
NOT USED
A
12/23/2011
K.MUNDY
A.GUNSON
T. OH
L.TAMELIN
1/3/2012
8:25:12
AM
WBS: 3220
B
PIPING AND INSTRUMENTATION DIAGRAM
SECONDARY CRUSHING
3200-25J-039
SECONDARY CRUSHER NO. 8
PLANT AIR
3771 3200-25J-017
COARSE SCREENING O/S
COARSE SCREENING O/S
CONVEYOR NO.2,
3772 3200-25J-034
C2-3240-CV-025
DUST
DUST COLLECTOR,
C2-3220-DC-151
3773 3200-25J-047
SEC CRUSHER PRODUCT
SEC CRUSHER NO. 8 DISC.
CONV. NO.2, C2-3220-CV-026
3774 3200-25J-046
3220
03909
ZS
3220
03909
ZI
P1
3220-AP-1324-C1A-2"-N
VENDOR VENDOR
ES
DUST
DUST COLLECTOR,
C2-3220-DC-153
4150 3200-25J-047
VENDOR
3220
03922
PDAH
3220
03923
PDAH
D
4
F
B
A
3
2
1 5 6 8
E
7
C
REV.
APPROVED
CHK.
DES.
REV. DATE REVISION DESCRIPTION
CLIENT
LEAD ENGINEER
SCALE DRAWING NUMBER
CHECK DESIGN CHECK DRAWING
DESIGNED BY DRAWN BY
APPROVAL DATE
APPROVAL DATE
APPROVED
CHK.
DES.
REV. DATE REVISION DESCRIPTION REFERENCE DRAWING No.
1:100
0
1:200
5m
10m
0
5m
10m
15m
20m
1:500
10m
0
20m
30m
40m
50m
1:1000
0
100m
50m
1:20
0
0.5m
1m
1.5m
2m
0
1:25
0.5m
1m
1.5m
1:33
1/3
2.5m
2m
0
1m
2m
3m
0
1:50
1m
2m
3m
4m
5m
CAD FILE NAME: P:0CAD000SPEM**
MODEL UPDATED:
DWG. FILE UPDATED:
MANUAL CHANGES MADE: YES NO YES NO YES NO
PROJECT MANAGER
ENGINEERING MANAGER
AREA PROJECTENGINEER
REFERENCE DRAWINGS
SAFETY SHARE:
APPROVAL DATE
CONTRACT
NO.
SAFETY SHARE :
BA6CVA1.IGR
NOTICE: THIS DRAWING HAS NOT BEEN PUBLISHED AND IS THE SOLE
PROPERTY OF FLUOR AND IS LENT TO THE BORROWER FOR THEIR
CONFIDENTIAL USE ONLY, AND IN CONSIDERATION OF THE LOAN OF THIS
DRAWING, THE BORROWER PROMISES AND AGREES TO RETURN IT UPON
REQUEST AND AGREES THAT IT WILL NOT BE REPRODUCED, COPIED LENT
OR OTHERWISE DISPOSED OF DIRECTLY OR INDIRECTLY, NOR USED FOR
ANY OTHER PURPOSE OTHER THAN WHICH IT IS FURNISHED.
NONE
Apr 2011
240K-C2-
AG
KM
LT
ISSUED FOR CLIENT REVIEW
23-Dec-11
B
NOT USED
A
12/23/2011
K.MUNDY
A.GUNSON
T. OH
L.TAMELIN
12/23/2011
11:43:12
AM
WBS: 3220
B
PIPING AND INSTRUMENTATION DIAGRAM
SECONDARY CRUSHING
3200-25J-040
CRUSHER NO. 7 AND NO. 8 LUBE SYSTEMS
SOCKET
LINER
ECCENTRIC
BUSHING
3220
34084
XA
H,P2
HH,P2
3220
34084
II
3220
34084
HS
FAULT
J/SP
3220
34083
XA
3220
34010
ZI
3220
34083
II
3220
34014
TI
3220
34083
HS
3220
34013
PI
3220
34012
TI
3220
34011
TI
(6 HYDRAULIC HOSES BY VENDOR)
FAULT
J/SP
3220
34082
XA
SIZE:
MOTOR:
C2-3220-CK-027
SECONDARY CRUSHER NO.7 LUBE OIL COOLER
3220
34082
II
C2-3220-CK-027
3220
34082
HS
FAULT
J/SP
3220
34081
XA
3220
34081
II
3220
34081
HS
VENDOR LOAD
CONTROL PANEL
OIL HEATERS (3)
VENDOR PLC
A,B,C
DIRTY
FILTER
FAULT
HYDRAULIC
OIL
V
HYDRAULIC OIL
TANK LEVEL
V
TRAMP RELEASE
PRESSURE
CLAMPING CIRCUIT
PRESSURE
V
H,P2
3220-OLL-1048-S1A-8"-N
H,P2
SIZE:
MOTOR:
C2-3220-LU-027
SECONDARY CRUSHER NO.7 LUBE SYSTEM
L,P2
H,P2
HH,P2
3220-OLL-1050-S1A-3"-N
H,P2
3220
34015
TI
V
L,P2
3220
34015
TIT
SIZE:
MOTOR:
C2-3220-HY-029
SECONDARY CRUSHER NO.7 HYDRAULIC SET SYSTEM
3220
34001
PI
3220
34015
TE
3220-OLL-1049-S1A-3"-N
3220
34002
PI
OP/CL
PUMP #2 DISCH VALVE
3220
34003
LI
OP/CL
PUMP #1 DISCH. VALVE
3220
34004
TI LUBE TANK
OIL LEVEL
3220
34005
PDI
L,P2
LL,P2
H,P2
HH,P2
H,P2
H,P2
HH,P2
H,P2
HH,P2
LUBE OIL FILTER
BOWL POSITION
3220-PP-921
3220-PP-922
3220-FA-082
3220-FA-081
3220-HY-021
SECONDARY CRUSHER NO.7
LUBE OIL COOLER
SECONDARY CRUSHER NO.7
3220
34024
XA
SECONDARY CRUSHER NO.7
LUBE SYSTEM
3220
34023
LI
VENDOR:
P.O. NO.:
MANUFACTURER:
SEE VENDOR DWG NO.:
3220
34022
ZI
VENDOR:
P.O. NO.:
MANUFACTURER:
SEE VENDOR DWG NO.:
3220
34021
ZI
VENDOR:
P.O. NO.:
MANUFACTURER:
SEE VENDOR DWG NO.:
3220
34025
PDI
VENDOR:
P.O. NO.:
MANUFACTURER:
SEE VENDOR DWG NO.:
3220
34026
TI
SECONDARY CRUSHER NO.7
HYDRAULIC POWER UNIT
H,P2
HH,P2
C2-3220-LU-027
FAULT
J/SP
3220
34016
TI
3220
34016
TIT
3220
34085
XA
3220
34016
TE
3220
34085
II
3220
34085
HS
OP/CL
COUNTERSHAFT
BEARING
FAULT
SUPPLY
OIL
J/SP
SOCKET
LINER
ECCENTRIC
BUSHING
3220
34584
XA
H,P2
HH,P2
3220
34584
II
3220
34584
HS
FAULT
J/SP
3220
34583
XA
3220
34510
ZI
3220
34583
II
3220
34514
TI
3220
34583
HS
3220
34513
PI
3220
34512
TI
3220
34511
TI
(6 HYDRAULIC HOSES BY VENDOR)
FAULT
J/SP
3220
34582
XA
SIZE:
MOTOR:
C2-3220-CK-028
SECONDARY CRUSHER NO.8 LUBE OIL COOLER
3220
34582
II
C2-3220-CK-028
3220
34582
HS
FAULT
J/SP
3220
34581
XA
3220
34581
II
3220
34581
HS
VENDOR LOAD
CONTROL PANEL
OIL HEATERS (3)
VENDOR PLC
A,B,C
DIRTY
FILTER
FAULT
HYDRAULIC
OIL
V
HYDRAULIC OIL
TANK LEVEL
V
TRAMP RELEASE
PRESSURE
CLAMPING CIRCUIT
PRESSURE
V
H,P2
3220-OLL-1051-S1A-8"-N
H,P2
SIZE:
MOTOR:
C2-3220-LU-028
SECONDARY CRUSHER LUBE NO.8 SYSTEM
L,P2
H,P2
HH,P2
3220-OLL-1053-S1A-3"-N
H,P2
3220
34515
TI
V
L,P2
3220
34515
TIT
SIZE:
MOTOR:
C2-3220-HY-030
SECONDARY CRUSHER NO.8 HYDRAULIC SET SYSTEM
3220
34501
PI
3220
34515
TE
3220-OLL-1052-S1A-3"-N
3220
34502
PI
OP/CL
PUMP #2 DISCH VALVE
3220
34503
LI
OP/CL
PUMP #1 DISCH. VALVE
3220
34504
TI LUBE TANK
OIL LEVEL
3220
34505
PDI
L,P2
LL,P2
H,P2
HH,P2
H,P2
H,P2
HH,P2
H,P2
HH,P2
LUBE OIL FILTER
BOWL POSITION
3220-PP-921
3220-PP-922
3220-FA-082
3220-FA-081
3220-HY-021
SECONDARY CRUSHER NO.8
LUBE OIL COOLER
SECONDARY CRUSHER NO.8
3220
34524
XA
SECONDARY CRUSHER NO.8
LUBE SYSTEM
3220
34523
LI
VENDOR:
P.O. NO.:
MANUFACTURER:
SEE VENDOR DWG NO.:
3220
34522
ZI
VENDOR:
P.O. NO.:
MANUFACTURER:
SEE VENDOR DWG NO.:
3220
34521
ZI
VENDOR:
P.O. NO.:
MANUFACTURER:
SEE VENDOR DWG NO.:
3220
34525
PDI
VENDOR:
P.O. NO.:
MANUFACTURER:
SEE VENDOR DWG NO.:
3220
34526
TI
HYDRAULIC POWER UNIT
H,P2
HH,P2
C2-3220-LU-028
C2-3220-HY-030
FAULT
J/SP
3220
34516
TI
3220
34516
TIT
3220
34585
XA
3220
34516
TE
3220
34585
II
3220
34585
HS
OP/CL
COUNTERSHAFT
BEARING
FAULT
SUPPLY
OIL
J/SP
SECONDARY CRUSHER NO.8
C2-3220-HY-029
C2-3220-CR-023
SIZE:
C2-3220-CR-023
SEC CRUSHER NO.7
SIZE:
C2-3220-CR-024
SEC CRUSHER NO.8
C2-3220-CR-024
D
4
F
B
A
3
2
1 5 6 8
E
7
C
REV.
APPROVED
CHK.
DES.
REV. DATE REVISION DESCRIPTION
CLIENT
LEAD ENGINEER
SCALE DRAWING NUMBER
CHECK DESIGN CHECK DRAWING
DESIGNED BY DRAWN BY
APPROVAL DATE
APPROVAL DATE
APPROVED
CHK.
DES.
REV. DATE REVISION DESCRIPTION REFERENCE DRAWING No.
1:100
0
1:200
5m
10m
0
5m
10m
15m
20m
1:500
10m
0
20m
30m
40m
50m
1:1000
0
100m
50m
1:20
0
0.5m
1m
1.5m
2m
0
1:25
0.5m
1m
1.5m
1:33
1/3
2.5m
2m
0
1m
2m
3m
0
1:50
1m
2m
3m
4m
5m
CAD FILE NAME: P:0CAD000SPEM**
MODEL UPDATED:
DWG. FILE UPDATED:
MANUAL CHANGES MADE: YES NO YES NO YES NO
PROJECT MANAGER
ENGINEERING MANAGER
AREA PROJECTENGINEER
REFERENCE DRAWINGS
SAFETY SHARE:
APPROVAL DATE
CONTRACT
NO.
SAFETY SHARE :
BA6CVA1.IGR
NOTICE: THIS DRAWING HAS NOT BEEN PUBLISHED AND IS THE SOLE
PROPERTY OF FLUOR AND IS LENT TO THE BORROWER FOR THEIR
CONFIDENTIAL USE ONLY, AND IN CONSIDERATION OF THE LOAN OF THIS
DRAWING, THE BORROWER PROMISES AND AGREES TO RETURN IT UPON
REQUEST AND AGREES THAT IT WILL NOT BE REPRODUCED, COPIED LENT
OR OTHERWISE DISPOSED OF DIRECTLY OR INDIRECTLY, NOR USED FOR
ANY OTHER PURPOSE OTHER THAN WHICH IT IS FURNISHED.
NONE
Apr 2011
240K-C2-
3220
34105
PDI
3220
34104
TI
3220
34103
LI
3220
34102
PI
3220
34101
PI
L,P2
H,P2
L,P2
H,P2
H,P2
CLAMPING CIRCUIT
PRESSURE
TRAMP RELEASE
PRESSURE
HYDRAULIC OIL
TANK LEVEL
HYDRAULIC
OIL
DIRTY
FILTER
(6 HYDRAULIC HOSES BY VENDOR) 3220
34111
TI
3220
34112
TI
3220
34113
PI
3220
34114
TI
3220
34110
ZI
H,P2
HH,P2
ECCENTRIC
BUSHING
SOCKET
LINER
SUPPLY
OIL
COUNTERSHAFT
BEARING
OP/CL
3220
34116
TE
3220
34116
TIT
3220
34116
TI
H,P2
HH,P2
3220
34126
TI
3220
34125
PDI
3220
34121
ZI
3220
34122
ZI
3220
34123
LI
3220
34124
XA
H,P2
L,P2
LL,P2
LUBE TANK
OIL LEVEL
OP/CL
PUMP #1 DISCH. VALVE
OP/CL
PUMP #2 DISCH VALVE
3220
34115
TE
3220
34115
TIT
3220
34115
TI
H,P2
HH,P2
3220
34181
HS
3220
34181
II
3220
34181
XA
J/SP
FAULT
3220
34182
HS
3220
34182
II
3220
34182
XA
J/SP
FAULT
3220
34183
HS
3220
34183
II
3220
34183
XA
J/SP
FAULT
3220
34184
HS
3220
34184
II
3220
34184
XA
J/SP
FAULT
3220
34185
HS
3220
34185
II
3220
34185
XA
J/SP
FAULT
C2-3220-HY-025
C2-3220-LU-023
SECONDARY CRUSHER NO.3
HYDRAULIC POWER UNIT
VENDOR:
P.O. NO.:
MANUFACTURER:
SEE VENDOR DWG NO.:
VENDOR:
P.O. NO.:
MANUFACTURER:
SEE VENDOR DWG NO.:
VENDOR:
P.O. NO.:
MANUFACTURER:
SEE VENDOR DWG NO.:
VENDOR:
P.O. NO.:
MANUFACTURER:
SEE VENDOR DWG NO.:
SECONDARY CRUSHER NO.3
LUBE SYSTEM
SECONDARY CRUSHER NO.3
SECONDARY CRUSHER NO.3
LUBE OIL COOLER
3220-HY-021
3220-FA-085
3220-FA-086
3220-PP-922
3220-PP-921
BOWL POSITION
LUBE OIL FILTER
H,P2
HH,P2
H,P2
HH,P2
H,P2
HH,P2
3220-OLL-1030-S1A-3"-N
SIZE:
MOTOR:
C2-3220-HY-025
SECONDARY CRUSHER NO.3 HYDRAULIC SET SYSTEM
?
3220-OLL-1029-S1A-8"-N
?
?
SIZE:
MOTOR:
C2-3220-LU-023
SECONDARY CRUSHER NO.3 LUBE SYSTEM
3220-OLL-1031-S1A-3"-N
?
AG
KM
LT
ISSUED FOR CLIENT REVIEW
23-Dec-11
B
RP
ISSUED FOR COMBINED REVIEW
23-Jun-11
A
12/23/2011
K.MUNDY
A.GUNSON
T. OH
L.TAMELIN
12/23/2011
2:48:20
PM
WBS: 3220
B
PIPING AND INSTRUMENTATION DIAGRAM
SECONDARY CRUSHING
3200-25J-041
CRUSHER NO. 3 LUBE SYSTEMS
OIL HEATERS (3)
FAULT
A,B,C
C2-3220-CK-023
SIZE:
MOTOR:
C2-3220-CK-023
SECONDARY CRUSHER NO.3 OIL COOLER
C2-3220-CR-013
SIZE:MP 1250
C2-3220-CR-013
SEC CRUSHER NO.3
D
4
F
B
A
3
2
1 5 6 8
E
7
C
REV.
APPROVED
CHK.
DES.
REV. DATE REVISION DESCRIPTION
CLIENT
LEAD ENGINEER
SCALE DRAWING NUMBER
CHECK DESIGN CHECK DRAWING
DESIGNED BY DRAWN BY
APPROVAL DATE
APPROVAL DATE
APPROVED
CHK.
DES.
REV. DATE REVISION DESCRIPTION REFERENCE DRAWING No.
1:100
0
1:200
5m
10m
0
5m
10m
15m
20m
1:500
10m
0
20m
30m
40m
50m
1:1000
0
100m
50m
1:20
0
0.5m
1m
1.5m
2m
0
1:25
0.5m
1m
1.5m
1:33
1/3
2.5m
2m
0
1m
2m
3m
0
1:50
1m
2m
3m
4m
5m
CAD FILE NAME: P:0CAD000SPEM**
MODEL UPDATED:
DWG. FILE UPDATED:
MANUAL CHANGES MADE: YES NO YES NO YES NO
PROJECT MANAGER
ENGINEERING MANAGER
AREA PROJECTENGINEER
REFERENCE DRAWINGS
SAFETY SHARE:
APPROVAL DATE
CONTRACT
NO.
SAFETY SHARE :
BA6CVA1.IGR
NOTICE: THIS DRAWING HAS NOT BEEN PUBLISHED AND IS THE SOLE
PROPERTY OF FLUOR AND IS LENT TO THE BORROWER FOR THEIR
CONFIDENTIAL USE ONLY, AND IN CONSIDERATION OF THE LOAN OF THIS
DRAWING, THE BORROWER PROMISES AND AGREES TO RETURN IT UPON
REQUEST AND AGREES THAT IT WILL NOT BE REPRODUCED, COPIED LENT
OR OTHERWISE DISPOSED OF DIRECTLY OR INDIRECTLY, NOR USED FOR
ANY OTHER PURPOSE OTHER THAN WHICH IT IS FURNISHED.
NONE
Apr 2011
240K-C2-
3220
34205
PDI
3220
34204
TI
3220
34203
LI
3220
34202
PI
3220
34201
PI
L,P2
H,P2
L,P2
H,P2
H,P2
CLAMPING CIRCUIT
PRESSURE
TRAMP RELEASE
PRESSURE
HYDRAULIC OIL
TANK LEVEL
HYDRAULIC
OIL
DIRTY
FILTER
(6 HYDRAULIC HOSES BY VENDOR) 3220
34211
TI
3220
34212
TI
3220
34213
PI
3220
34214
TI
3220
34210
ZI
H,P2
HH,P2
ECCENTRIC
BUSHING
SOCKET
LINER
SUPPLY
OIL
COUNTERSHAFT
BEARING
OP/CL
3220
34216
TE
3220
34216
TIT
3220
34216
TI
H,P2
HH,P2
3220
34226
TI
3220
34225
PDI
3220
34221
ZI
3220
34222
ZI
3220
34223
LI
3220
34224
XA
H,P2
L,P2
LL,P2
LUBE TANK
OIL LEVEL
OP/CL
PUMP #1 DISCH. VALVE
OP/CL
PUMP #2 DISCH VALVE
3220
34215
TE
3220
34215
TIT
3220
34215
TI
H,P2
HH,P2
3220
34281
HS
3220
34281
II
3220
34281
XA
J/SP
FAULT
3220
34282
HS
3220
34282
II
3220
34282
XA
J/SP
FAULT
3220
34283
HS
3220
34283
II
3220
34283
XA
J/SP
FAULT
3220
34284
HS
3220
34284
II
3220
34284
XA
J/SP
FAULT
3220
34285
HS
3220
34285
II
3220
34285
XA
J/SP
FAULT
C2-3220-HY-026
C2-3220-LU-024
SECONDARY CRUSHER NO.4
HYDRAULIC POWER UNIT
VENDOR:
P.O. NO.:
MANUFACTURER:
SEE VENDOR DWG NO.:
VENDOR:
P.O. NO.:
MANUFACTURER:
SEE VENDOR DWG NO.:
VENDOR:
P.O. NO.:
MANUFACTURER:
SEE VENDOR DWG NO.:
VENDOR:
P.O. NO.:
MANUFACTURER:
SEE VENDOR DWG NO.:
SECONDARY CRUSHER NO.4
LUBE SYSTEM
SECONDARY CRUSHER NO.4
SECONDARY CRUSHER NO.4
LUBE OIL COOLER
3220-HY-021
3220-FA-087
3220-FA-088
3220-PP-922
3220-PP-921
BOWL POSITION
LUBE OIL FILTER
H,P2
HH,P2
H,P2
HH,P2
H,P2
HH,P2
3220-OLL-1034-S1A-3"-N
V
3220-OLL-1033-S1A-3"-N
SIZE:
MOTOR:
C2-3220-HY-026
SECONDARY CRUSHER NO.4 HYDRAULIC SET SYSTEM
3220-OLL-1032-S1A-8"-N
V
V
V
SIZE:
MOTOR:
C2-3220-LU-024
SECONDARY CRUSHER NO.4 LUBE SYSTEM
AG
KM
LT
ISSUED FOR CLIENT REVIEW
23-Dec-11
B
RP
ISSUED FOR COMBINED REVIEW
23-Jun-11
A
12/23/2011
K.MUNDY
A.GUNSON
T. OH
L.TAMELIN
12/23/2011
12:17:25
PM
WBS: 3220
B
PIPING AND INSTRUMENTATION DIAGRAM
SECONDARY CRUSHING
3200-25J-042
CRUSHER NO. 4 LUBE SYSTEMS
FAULT
A,B,C
OIL HEATERS (3)
C2-3220-CK-024
SIZE:
MOTOR:
C2-3220-CK-024
SECONDARY CRUSHER NO.4 LUBE OIL COOLER
C2-3220-CR-014
SIZE:
C2-3220-CR-014
SECONDARY CRUSHER NO.4
D
4
F
B
A
3
2
1 5 6 8
E
7
C
REV.
APPROVED
CHK.
DES.
REV. DATE REVISION DESCRIPTION
CLIENT
LEAD ENGINEER
SCALE DRAWING NUMBER
CHECK DESIGN CHECK DRAWING
DESIGNED BY DRAWN BY
APPROVAL DATE
APPROVAL DATE
APPROVED
CHK.
DES.
REV. DATE REVISION DESCRIPTION REFERENCE DRAWING No.
1:100
0
1:200
5m
10m
0
5m
10m
15m
20m
1:500
10m
0
20m
30m
40m
50m
1:1000
0
100m
50m
1:20
0
0.5m
1m
1.5m
2m
0
1:25
0.5m
1m
1.5m
1:33
1/3
2.5m
2m
0
1m
2m
3m
0
1:50
1m
2m
3m
4m
5m
CAD FILE NAME: P:0CAD000SPEM**
MODEL UPDATED:
DWG. FILE UPDATED:
MANUAL CHANGES MADE: YES NO YES NO YES NO
PROJECT MANAGER
ENGINEERING MANAGER
AREA PROJECTENGINEER
REFERENCE DRAWINGS
SAFETY SHARE:
APPROVAL DATE
CONTRACT
NO.
SAFETY SHARE :
BA6CVA1.IGR
NOTICE: THIS DRAWING HAS NOT BEEN PUBLISHED AND IS THE SOLE
PROPERTY OF FLUOR AND IS LENT TO THE BORROWER FOR THEIR
CONFIDENTIAL USE ONLY, AND IN CONSIDERATION OF THE LOAN OF THIS
DRAWING, THE BORROWER PROMISES AND AGREES TO RETURN IT UPON
REQUEST AND AGREES THAT IT WILL NOT BE REPRODUCED, COPIED LENT
OR OTHERWISE DISPOSED OF DIRECTLY OR INDIRECTLY, NOR USED FOR
ANY OTHER PURPOSE OTHER THAN WHICH IT IS FURNISHED.
NONE
Apr 2011
240K-C2-
3220
34305
PDI
3220
34304
TI
3220
34303
LI
3220
34302
PI
3220
34301
PI
L,P2
H,P2
L,P2
H,P2
H,P2
CLAMPING CIRCUIT
PRESSURE
TRAMP RELEASE
PRESSURE
HYDRAULIC OIL
TANK LEVEL
HYDRAULIC
OIL
DIRTY
FILTER
(6 HYDRAULIC HOSES BY VENDOR) 3220
34311
TI
3220
34312
TI
3220
34313
PI
3220
34314
TI
3220
34310
ZI
H,P2
HH,P2
ECCENTRIC
BUSHING
SOCKET
LINER
SUPPLY
OIL
COUNTERSHAFT
BEARING
OP/CL
3220
34316
TE
3220
34316
TIT
3220
34316
TI
H,P2
HH,P2
3220
34326
TI
3220
34325
PDI
3220
34321
ZI
3220
34322
ZI
3220
34323
LI
3220
34324
XA
H,P2
L,P2
LL,P2
LUBE TANK
OIL LEVEL
OP/CL
PUMP #1 DISCH. VALVE
OP/CL
PUMP #2 DISCH VALVE
3220
34315
TE
3220
34315
TIT
3220
34315
TI
H,P2
HH,P2
3220
34381
HS
3220
34381
II
3220
34381
XA
J/SP
FAULT
3220
34382
HS
3220
34382
II
3220
34382
XA
J/SP
FAULT
3220
34383
HS
3220
34383
II
3220
34383
XA
J/SP
FAULT
3220
34384
HS
3220
34384
II
3220
34384
XA
J/SP
FAULT
3220
34385
HS
3220
34385
II
3220
34385
XA
J/SP
FAULT
C2-3220-HY-027
C2-3220-LU-025
SECONDARY CRUSHER NO.5
HYDRAULIC POWER UNIT
VENDOR:
P.O. NO.:
MANUFACTURER:
SEE VENDOR DWG NO.:
VENDOR:
P.O. NO.:
MANUFACTURER:
SEE VENDOR DWG NO.:
VENDOR:
P.O. NO.:
MANUFACTURER:
SEE VENDOR DWG NO.:
VENDOR:
P.O. NO.:
MANUFACTURER:
SEE VENDOR DWG NO.:
SECONDARY CRUSHER NO.5
LUBE SYSTEM
SECONDARY CRUSHER NO.5
SECONDARY CRUSHER NO.5
LUBE OIL COOLER
3220-HY-021
3220-FA-089
3220-FA-090
3220-PP-922
3220-PP-921
BOWL POSITION
LUBE OIL FILTER
H,P2
HH,P2
H,P2
HH,P2
H,P2
HH,P2
SIZE:
MOTOR:
C2-3220-LU-025
SECONDARY CRUSHER NO. 5LUBE SYSTEM
3220-OLL-1037-S1A-3"-N
V
V
V
SIZE:
MOTOR:
C2-3220-HY-027
SECONDARY CRUSHER NO.5 HYDRAULIC SET SYSTEM
3220-OLL-1036-S1A-3"-N
V
3220-OLL-1035-S1A-8"-N
AG
KM
LT
ISSUED FOR CLIENT REVIEW
23-Dec-11
B
RP
ISSUED FOR COMBINED REVIEW
23-Jun-11
A
12/23/2011
K.MUNDY
A.GUNSON
T. OH
L.TAMELIN
12/23/2011
1:08:33
PM
WBS: 3220
B
PIPING AND INSTRUMENTATION DIAGRAM
SECONDARY CRUSHING
3200-25J-043
CRUSHER NO. 5 LUBE SYSTEMS
FAULT
OIL HEATERS (3)
A,B,C
C2-3220-CK-025
SIZE:
MOTOR:
C2-3220-CK-025
SECONDARY CRUSHER NO.5 LUBE OIL COOLER
SIZE:
C2-3220-CR-021
SEC CRUSHER NO.5
C2-3220-CR-021
3220-FA-091
3220
34484
HS
3220
34403
LI
3220
34423
LI
L,P2
LL,P2
3220
34412
TI
3220
34411
TI ECCENTRIC
BUSHING
3220
34422
ZI
3220
34482
II
3220
34481
II
3220
34482
XA
3220
34421
ZI
3220
34484
II
3220
34484
XA
3220
34481
HS
3220
34483
HS
3220
34425
PDI
LUBE OIL FILTER
3220
34416
TI
H,P2
HH,P2
3220
34405
PDI
H,P2
3220
34416
TIT
3220
34481
XA
3220
34426
TI
3220
34404
TI
H,P2
3220
34410
ZI
3220
34424
XA FAULT
3220
34485
II
3220
34416
TE
3220
34485
HS
3220
34483
XA
3220
34483
II
3220
34482
HS
3220
34402
PI
H,P2 3220
34485
XA
3220
34413
PI
3220
34415
TE
3220
34415
TI
H,P2
HH,P2
3220
34414
TI
3220
34415
TIT
3220
34401
PI
L,P2
OIL HEATERS (3)
A,B,C
COUNTERSHAFT
BEARING
DIRTY
FILTER
FAULT
HYDRAULIC
OIL
BOWL POSITION
LUBE TANK
OIL LEVEL
SUPPLY
OIL
VENDOR:
P.O. NO.:
MANUFACTURER:
SEE VENDOR DWG NO.:
J/SP
J/SP
H,P2
HH,P2
H,P2
OP/CL
PUMP #2 DISCH VALVE
L,P2
3220-HY-021
FAULT
H,P2
HH,P2
VENDOR:
P.O. NO.:
MANUFACTURER:
SEE VENDOR DWG NO.:
SECONDARY CRUSHER NO.6
HYDRAULIC POWER UNIT
TRAMP RELEASE
PRESSURE
J/SP
VENDOR:
P.O. NO.:
MANUFACTURER:
SEE VENDOR DWG NO.:
CLAMPING CIRCUIT
PRESSURE
SECONDARY CRUSHER NO.6
FAULT
SECONDARY CRUSHER NO.6
LUBE SYSTEM
SECONDARY CRUSHER NO.6
LUBE OIL COOLER
FAULT
FAULT
VENDOR:
P.O. NO.:
MANUFACTURER:
SEE VENDOR DWG NO.:
J/SP
3220-FA-092
3220-PP-921
H,P2
HH,P2
OP/CL
PUMP #1 DISCH. VALVE
3220-PP-922
SOCKET
LINER
H,P2
HH,P2
J/SP
OP/CL
(6 HYDRAULIC HOSES BY VENDOR)
HYDRAULIC OIL
TANK LEVEL
C2-3220-LU-026
AG
KM
LT
ISSUED FOR CLIENT REVIEW
23-Dec-11
B
RP
ISSUED FOR COMBINED REVIEW
23-Jun-11
A
12/23/2011
K.MUNDY
A.GUNSON
T. OH
L.TAMELIN.
12/23/2011
2:50:16
PM
WBS: 3220
B
PIPING AND INSTRUMENTATION DIAGRAM
SECONDARY CRUSHING
3200-25J-044
CRUSHER NO. 6 LUBE SYSTEMS
C2-3220-HY-028
C2-3220-CK-026
SIZE:
MOTOR:
C2-3220-CK-026
SECONDARY CRUSHER NO.6 LUBE OIL COOLER
3220-OLL-1039-S1A-3"-N
SIZE:
MOTOR:
C2-3220-LU-026
SECONDARY CRUSHER NO.6 LUBE SYSTEM
3220-OLL-1038-S1A-8"-N
3220-OLL-1040-S1A-3"-N
V
V
SIZE:
MOTOR:
C2-3220-HY-028
SECONDARY CRUSHER NO.6 HYDRAULIC SET SYSTEM
V
V
D
4
F
B
A
3
2
1 5 6 8
E
7
C
REV.
APPROVED
CHK.
DES.
REV. DATE REVISION DESCRIPTION
CLIENT
LEAD ENGINEER
SCALE DRAWING NUMBER
CHECK DESIGN CHECK DRAWING
DESIGNED BY DRAWN BY
APPROVAL DATE
APPROVAL DATE
APPROVED
CHK.
DES.
REV. DATE REVISION DESCRIPTION REFERENCE DRAWING No.
1:100
0
1:200
5m
10m
0
5m
10m
15m
20m
1:500
10m
0
20m
30m
40m
50m
1:1000
0
100m
50m
1:20
0
0.5m
1m
1.5m
2m
0
1:25
0.5m
1m
1.5m
1:33
1/3
2.5m
2m
0
1m
2m
3m
0
1:50
1m
2m
3m
4m
5m
CAD FILE NAME: P:0CAD000SPEM**
MODEL UPDATED:
DWG. FILE UPDATED:
MANUAL CHANGES MADE: YES NO YES NO YES NO
PROJECT MANAGER
ENGINEERING MANAGER
AREA PROJECTENGINEER
REFERENCE DRAWINGS
SAFETY SHARE:
APPROVAL DATE
CONTRACT
NO.
SAFETY SHARE :
BA6CVA1.IGR
NOTICE: THIS DRAWING HAS NOT BEEN PUBLISHED AND IS THE SOLE
PROPERTY OF FLUOR AND IS LENT TO THE BORROWER FOR THEIR
CONFIDENTIAL USE ONLY, AND IN CONSIDERATION OF THE LOAN OF THIS
DRAWING, THE BORROWER PROMISES AND AGREES TO RETURN IT UPON
REQUEST AND AGREES THAT IT WILL NOT BE REPRODUCED, COPIED LENT
OR OTHERWISE DISPOSED OF DIRECTLY OR INDIRECTLY, NOR USED FOR
ANY OTHER PURPOSE OTHER THAN WHICH IT IS FURNISHED.
NONE
Apr 2011
240K-C2-
C2-3220-CR-022
SIZE:
MOTOR:
C2-3220-CR-022
SECONDARY CRUSHER NO.6
T5
T8
T1
GEAR
REDUCER
GEAR
REDUCER
GEAR
REDUCER
LHS
VENDOR
3220
04582
HS
3220
04581
HS
3220
04580
HS
3220
04580
II
3220
04580
XA
3220
04551
VE
3220
04551
VI
3220
04552
LA L, P2
3220
04533
TI
H, P2
HH, P1
H, P2
HH, P1
L, P2
3220
04531
VE
3220
04551
VT
3220
04531
VI
3220
04552
LSL
3220
04532
LA
04553
TE
3220
04553
TI
H, P2
HH, P1
3220
04532
LE
04543
TE
3220
04543
TI
3220
04542
LA
3220
04541
VI
3220
04542
LE
3220
04541
VT
3220
04552
LE
04533
TE
3220
04542
LSL
3220
04518
FIT
3220
04518
FIC
M
3220
H
TI
BRG
FRONT
H, P2
HH, P1
3220
G
TI
3220
H
TE
3220
G
TE
3220
04512 D
ZS
3220
04507
TI
H, P2
HH, P1
LHS
3220
04501
HSA
A-H
3220
04501
HSS
3220
04505
ZSHH
3210
04513
NS
3210
04513
NA
P1
3220
04512 B
ZA
3220
04582 H
TI
BRG
REAR
H, P2
HH, P1
3220
04507
TE
3220
04515 A
LE
3220
04581 H
TI
BRG
REAR
H, P2
HH, P1
3220
04522
ZSHH
3220
04521
SSL
3220
04580 H
TE
3220
04503 B
SE
3220
04522
ZAHH
3220
04503 A
SI
3220
04508
XA
A,B
3220
04501
HSS
LHS
3220
04505
ZAHH
P1
A,B
RHS
3220
04502
HSS
RHS
3220
04504
ZAHH
P1
A,B
LHS
3220
04505
ZAH
3220
04504
ZAH
3220
04585
HS
J/SP
3220
04513
XE
3220
04513
XE
3220
04513
XI
3220
04513
XY
3220
04504
ZSHH
3220
04503 A
ST
3220
04582 G
TE
3220
04512 D
ZA
3220
04512 A
ZS
3220
04512 A
ZA
3220
04513
XY
B
3220
04580 G
TI
3220
04515 B
LAH
P1
3220
04516
LI
H, P1
3220
04504
ZSH
3220
04512 B
ZS
P2
3220
04505
ZSHH
3220
04521
SAL P1
3220
04505
ZAHH
3220
04508 B
XS
3220
04504
ZAHH P1
3220
04582
II
3220
04582 H
TE
3220
04516
LE
3220
04503 A
SE
3220
04582
XA
3220
04581 H
TE
3220
04585
XA
3220
04510
WIT
3220
04581
II
3220
04505
ZSH
RHS
3220
04521
SE 3220
04582 G
TI
3220
04506
TI
3220
04584
HS
3220
04504
ZSHH
3220
04504
ZAH P2
LHS
3220
04515 B
LE
3220
04510
WI L, P2
3220
04522
ZAH
P2
P2
3220
04502
HSA
3220
04512 C
ZS
3220
04583
XA FAULT
3220
04510
SE
3220
04505
ZAH
3220
04505
ZSH
RHS
3220
04508 A
XS
3220
04516
LIT
3220
04532
LSL
3220
04531
VT
3220
04515 B
LSH
3220
04581 G
TE
3220
04504
ZSH
LHS
3220
04503 B
SI
3220
04583
HS
(J) JF/JR
SP
3220
04512 C
ZA
3220
04515 A
LAH
P1
3220
04515 A
LSH
3220
04541
VE
3220
04522
ZSH
3220
04501
HSA
P1
LHS
3220
04581 G
TI
3220
04580 G
TE
3220
04584
II
3220
04581
XA
3220
04502
HSA
RHS
P1
3220
04506
TE
3220
04503 B
ST
3220
04510
WE
3220
04583
II
3220
04503
SDI
3220
04502
HSS
3220
04585
II
3220
04580 H
TI
BRG
REAR
H, P2
HH, P1
3220
04584
XA FAULT
WRIM
DUST
DUST COLLECTOR ,
C2-3220-DC-122
3458 3200-25J-047
DUST
DUST COLLECTOR,
C2-3220-DC-121
3459 3200-25J-047
DUST
DUST COLLECTOR ,
C2-3220-DC-031
3460 3200-25J-047
DUST
DUST COLLECTOR
C2-3220-DC-123
3457 3200-25J-047
SEC. CRUSHER PRODUCT
SECONDARY CRUSHER NO.2,
C2-3220-CR-013
1820 3200-25J-031
COARSE SCREEN FEED
COARSE ORE SURGE BINS,
C2-3240-BN-011/012/013/014
1787 3200-25J-011
FRESH WATER
3486 5100-25J-014
SEC. CRUSHER PRODUCT
SECONDARY CRUSHERNO.1,
C2-3220-CR-012
1818 3200-25J-027
PRIM. CRUSHER PRODUCT
COARSE ORE RECLAIM CONV.
NO.1, C2-3210-CV-013
1366 3200-25J-005
DUST
DUST COLLECTOR ,
C2-3220-DC-123
1419
3200-25J-047
SEC. CRUSHER PRODUCT
SECONDARY CRUSHER NO.4,
C2-3220-CR-014
4112 3200-25J-033
SEC. CRUSHER AREA SUMP
COOLING WATER RETURN
PUMPBOX, C2-3230-BX-030
1823 3200-25J-079
SEC. CRUSHER PRODUCT
SECONDARY CRUSHER NO.3,
C2-3220-CR-014
1821 3200-25J-032
H, P2
L, P2
LL, P1
J/SP
J/SP
J/SP
FAULT
H, P2
HH, P1
L, P2
H, P2
HH, P1
SAFETY
INTERLOCKS
H, P2
HH, P1
BRG
REAR
H, P2
HH, P1
BRG
FRONT
AFD
BRG
REAR
A-B
RHS
P1
A-H
D,E
D,E
WRIM
BRG
FRONT
H, P2
HH, P1
A TO N
A-B
A-B
A-B
A-B
SENSOR GUARD
HYDRAULIC
RAIL CLAMP
LHS
J-L
END
TRAVEL
FAULT
OVER
TRAVEL
J/SP
A B
A
END
TRAVEL
H1, P2
P2
WRIM
P1
LHS
FAULT
P1
OVER
TRAVEL
CONT.
P1
TEAR
D,E
J-L
P1
D,E
FAULT
A-B
P1
RHS
LHS
P2
A,B
P2
A,B
BRG
FRONT
H, P2
HH, P1
LHS
RHS
H, P2
HH, P1
RHS
BRG
FRONT
H, P2
HH, P1
P2
RHS
J-L
A-H
A-H
J-L
T5
ES
V
ES
C2-3220-SL-009
C2-3220-DV-016
V V
V
V
V
V
SIZE:
C2-3220-ST-152
CV-016 HEAD TRANSFER CHUTE
V V
V
V
T5
C2-3210-MD-017
C2-3220-ST-155
ES
ES
T5
C2-3220-ZM-216
C2-3220-CV-016
C2-3220-PP-032
3220
04511
XA
+
V V
V
V ES
V
SIZE:
MOTOR:
C2-3220-DV-016
CV-016 SHUTTLE HEAD
V
V
V
ES
V V
V V
ES
C2-3220-MA-009
V
C2-3220-ST-152
V
FV
04518
+
FF
04518
+
C2-3220-ZE-008
ES
V
C2-3220-BN-007
3220-WF-1470-C1A-2"-N
SIZE:
MATERIAL:
MOTOR:
C2-3220-PP-032
CRUSHING AREA SUMP PUMP NO.2
V
V
ES
ES
SIZE:
C2-3220-ST-155
CV-016 TRAMP METAL CHUTE
V
V
SIZE:
MATERIAL:
MOTOR:
C2-3220-CV-016
SECONDARY CRUSHER DISCHARGE CONVEYOR NO. 1
V
SIZE:
MATERIAL:
CAPACITY:
TRIM:
C2-3220-BN-007
CV-016 TRAMP METAL BIN
SIZE:
C2-3220-SL-009
CV-016 BELT SCALE
SIZE:
C2-3220-ZM-216
HYDRAULIC RAIL CLAMP
V
V
V
3220-SL-1011-C1B-6"-N
ES
V
SIZE:
C2-3220-MA-009
CV-016 SELF CLEANING MAGNET
AG
KM
LT
ISSUED FOR CLIENT REVIEW
23-Dec-11
B
RP
ISSUED FOR COMBINED REVIEW
23-Jun-11
A
12/23/2011
K.MUNDY
A.GUNSON
T. OH
L.TAMELIN
1/3/2012
2:02:27
PM
WBS: 3220
B
PIPING AND INSTRUMENTATION DIAGRAM
SECONDARY CRUSHING
3200-25J-045
SEC. CRUSHER DISCHARGE CONVEYOR 1
SIZE:
C2-3210-MD-017
CV-016 METAL DETECTOR
ES
SIZE:
C2-3220-ZE-008
CV016 BELT RIP DETECTOR
3220
XA
+
D
4
F
B
A
3
2
1 5 6 8
E
7
C
REV.
APPROVED
CHK.
DES.
REV. DATE REVISION DESCRIPTION
CLIENT
LEAD ENGINEER
SCALE DRAWING NUMBER
CHECK DESIGN CHECK DRAWING
DESIGNED BY DRAWN BY
APPROVAL DATE
APPROVAL DATE
APPROVED
CHK.
DES.
REV. DATE REVISION DESCRIPTION REFERENCE DRAWING No.
1:100
0
1:200
5m
10m
0
5m
10m
15m
20m
1:500
10m
0
20m
30m
40m
50m
1:1000
0
100m
50m
1:20
0
0.5m
1m
1.5m
2m
0
1:25
0.5m
1m
1.5m
1:33
1/3
2.5m
2m
0
1m
2m
3m
0
1:50
1m
2m
3m
4m
5m
CAD FILE NAME: P:0CAD000SPEM**
MODEL UPDATED:
DWG. FILE UPDATED:
MANUAL CHANGES MADE: YES NO YES NO YES NO
PROJECT MANAGER
ENGINEERING MANAGER
AREA PROJECTENGINEER
REFERENCE DRAWINGS
SAFETY SHARE:
APPROVAL DATE
CONTRACT
NO.
SAFETY SHARE :
BA6CVA1.IGR
NOTICE: THIS DRAWING HAS NOT BEEN PUBLISHED AND IS THE SOLE
PROPERTY OF FLUOR AND IS LENT TO THE BORROWER FOR THEIR
CONFIDENTIAL USE ONLY, AND IN CONSIDERATION OF THE LOAN OF THIS
DRAWING, THE BORROWER PROMISES AND AGREES TO RETURN IT UPON
REQUEST AND AGREES THAT IT WILL NOT BE REPRODUCED, COPIED LENT
OR OTHERWISE DISPOSED OF DIRECTLY OR INDIRECTLY, NOR USED FOR
ANY OTHER PURPOSE OTHER THAN WHICH IT IS FURNISHED.
NONE
Apr 2011
240K-C2-
J H
G
K
A
A-K
A-K
A-K
A-K
NOTE 1
E
F C
D
NOTE:
1. IN INSTRUMENT NUMBERING SUFFIXED LETTER 'I' AND 'O' ARE NOT USED
B
T1
T8
T5
GEAR
REDUCER
GEAR
REDUCER
GEAR
REDUCER
HYDRAULIC
RAIL CLAMP
LHS
3220
04606 A
TE
3220
04604
ZAHH P1
3220
04682 G
TE
3220
04608 A
XS
3220
04602
HSA
3220
04681
HS
3220
04685
HS
J/SP
3220
04610
WE
3220
04612 B
ZS
P2
3220
04684
HS
3220
04684
II
3220
04603 A
ST
3220
04681
XA
3220
04606 A
TI
3220
04605
ZAHH
P1
A,B
RHS
3220
04608
XA
A,B
3220
04605
ZAH
3220
04510
WI L, P2
3220
04615 B
LAH
P1
3220
04612 C
ZS
3220
04622
ZAH
P1
P1
3220
04605
ZAHH
3220
04604
ZAH
3220
04682
HS
3220
04603 B
ST
3220
04615 B
LE
3220
04680 G
TI
3220
04602
HSS
RHS
3220
04612 B
ZA
3220
04585
XA
3220
04510
WIT
3220
04683
HS
(J) JF/JR
SP
3220
04681 H
TE
3220
04603 B
SI
3220
04682
XA
3220
04681 H
TI
BRG
REAR
H, P2
HH, P1
3220
04681 G
TE
3220
04603 A
SE
3220
04615 A
LE
3220
04616
LE
3220
04607 A
TE
3220
04615 B
LSH
3220
04613
XI
3220
04682 H
TE
3220
04616
LIT
3220
04601
HSA
A-H
3220
04682
II
3220
04684
XA FAULT
3220
04605
ZSH
RHS
3220
04601
HSA
P1
LHS
3220
04608 B
XS
3220
04610
SE
3220
04680 H
TI
BRG
REAR
H, P2
HH, P1
3220
04622
ZSA
3220
04621
SAL P1
3220
04607 A
TI
H, P2
HH, P1
LHS
3220
04613
XE
3220
04605
ZSHH
3220
04612 C
ZA
P2
3220
04680
XA
3220
04613
XE
3220
04602
HSS
RHS
3220
04604
ZSH
LHS
3220
04680
II
3220
04612 A
ZA
3220
04603
SDI
3220
04612 D
ZA
OVER
TRAVEL
3220
04605
ZAH
3220
04616
LI
H, P1
3220
04604
ZSH
LHS
3220
04612 A
ZS
3220
04683
XA FAULT
3220
04683
II
3220
04680
HS
3220
04604
ZAHH
P1
A,B
LHS
3220
04613
XY
3220
04613
NA
3220
04680 G
TE
3220
04605
ZSH
RHS
3220
04613
NS
3220
04602
HSA
RHS
P1
3220
04682 H
TI
BRG
REAR
H, P2
HH, P1
3220
04681 G
TI
3220
04682 G
TI
3220
04605
ZSHH
3220
04603 A
SI
3220
04681
II
3220
04680 H
TE
3220
04615 A
LAH
P1
3220
04612 D
ZS
3220
04621
SE
3220
04601
HSS
3220
04604
ZSHH
3220
04613
XY
B
3220
04622
ZAHA
3220
04604
ZSHH
3220
04621
SSL
3220
04685
II
3220
04601
HSS
LHS
3220
04622
ZSHA
3220
04615 A
LSH
3220
04604
ZAH P2
LHS
3220
04603 B
SE
WRIM
SEC. CRUSHER AREA SUMP
COOLING WATER RETURN
PUMPBOX, C2-3230-BX-030A
3647 3200-25J-079
DUST
DUST COLLECTOR ,
C2-3220-DC-153
3461 3200-25J-047
DUST
DUST COLLECTOR ,
C2-3220-DC-152
3462 3200-25J-047
DUST
DUST COLLECTOR ,
C2-3220-DC-151
3463 3200-25J-047
DUST
DUST COLLECTOR ,
C2-3220-DC-051
3464 3200-25J-047
FRESH WATER
3487 5100-25J-014
COARSE SCREEN FEED
COARSE ORE SURGE BINS,
C2-3240-BN-015/016/017/018
1969 3200-25J-015
SEC. CRUSHER PRODUCT
SECONDARY CRUSHER NO.5,
C2-3220-CR-023
1951 3200-25J-034
DUST
DUST COLLECTOR ,
C2-3220-DC-153
1424
3200-25J-047
SEC. CRUSHER PRODUCT
SECONDARY CRUSHER NO.6,
C2-3220-CR-022
1956 3200-25J-035
PRIM. CRUSHER PRODUCT
COARSE ORE RECLAIM CONV.
NO.2, C2-3210-CV-023
1933 3200-25J-006
LHS
BRG
FRONT
H, P2
HH, P1
J/SP
P1
END
TRAVEL
J/SP
J-L
A TO N
FAULT
TEAR
P1
LHS
RHS
P1
A-B
D,E
RHS
P1
BRG
FRONT
H, P2
HH, P1
A-H
P1
P1
LHS
A
D,E D,E
OVER
TRAVEL
FAULT
A,B
J-L
P2
END
TRAVEL
J-L
A-H
WRIM
A,B
J-L
P2
WRIM
P2
RHS
A-H
H, P2
HH, P1
RHS
FAULT
A
H, P2
L, P2
LL, P1
P1
J/SP
B
J/SP
FAULT
H1, P2
A-B
D,E
BRG
FRONT
H, P2
HH, P1
ES
V
C2-3220-ST-154
V
SIZE:
MATERIAL:
MOTOR:
C2-3220-PP-033
SECONDARY CRUSHING AREA SUMP PUMP NO.1
C2-3220-BN-008
3220
04611
XA
+
C2-3220-PP-033
C2-3220-CV-026
T5
V
V
V
V
C2-3220-DV-026
C2-3220-SL-026
C2-3220-ST-156
T5
AG
KM
LT
ISSUED FOR CLIENT REVIEW
23-Dec-11
B
RP
ISSUED FOR COMBINED REVIEW
23-Jun-11
A
12/23/2011
K.MUNDY
A.GUNSON
T. OH
L.TAMELIN
1/3/2012
9:11:28
AM
WBS: 3220
B
PIPING AND INSTRUMENTATION DIAGRAM
SECONDARY CRUSHING
3200-25J-046
SEC. CRUSHER DISCHARGE CONVEYOR 2
3220-WF-1471-C1A-2"-N
T5
SIZE:
C2-3220-MA-010
CV-026 SELF CLEANING MAGNET
ES
V
V
V
V
SIZE:
C2-3220-ZM-226
HYDRAULIC RAIL CLAMP
SIZE:
C2-3220-MD-018
CV-026 METAL DETECTOR
V
V
ES
SIZE:
C2-3220-SL-026
CV-026 BELT SCALE
V
SIZE:
MATERIAL:
MOTOR:
C2-3220-CV-026
SECONDARY CRUSHER DISCHARGE CONVEYOR NO. 2
V
ES
SIZE:
C2-3220-ST-156
CV-016 TRAMP METAL CHUTE
SIZE:
C2-3220-ST-154
CV-026 HEAD TRANSFER CHUTE
ES ES
C2-3220-MA-010
V
V
V
3220-SL-1012-C1B-6"-N
SIZE:
MATERIAL:
CAPACITY:
TRIM:
C2-3220-BN-008
CV-016 TRAMP METAL BIN
SIZE:
MOTOR:
C2-3220-DV-026
CV-026 SHUTTLE HEAD
V
C2-3220-ZM-226
ES
V
D
4
F
B
A
3
2
1 5 6 8
E
7
C
REV.
APPROVED
CHK.
DES.
REV. DATE REVISION DESCRIPTION
CLIENT
LEAD ENGINEER
SCALE DRAWING NUMBER
CHECK DESIGN CHECK DRAWING
DESIGNED BY DRAWN BY
APPROVAL DATE
APPROVAL DATE
APPROVED
CHK.
DES.
REV. DATE REVISION DESCRIPTION REFERENCE DRAWING No.
1:100
0
1:200
5m
10m
0
5m
10m
15m
20m
1:500
10m
0
20m
30m
40m
50m
1:1000
0
100m
50m
1:20
0
0.5m
1m
1.5m
2m
0
1:25
0.5m
1m
1.5m
1:33
1/3
2.5m
2m
0
1m
2m
3m
0
1:50
1m
2m
3m
4m
5m
CAD FILE NAME: P:0CAD000SPEM**
MODEL UPDATED:
DWG. FILE UPDATED:
MANUAL CHANGES MADE: YES NO YES NO YES NO
PROJECT MANAGER
ENGINEERING MANAGER
AREA PROJECTENGINEER
REFERENCE DRAWINGS
SAFETY SHARE:
APPROVAL DATE
CONTRACT
NO.
SAFETY SHARE :
BA6CVA1.IGR
NOTICE: THIS DRAWING HAS NOT BEEN PUBLISHED AND IS THE SOLE
PROPERTY OF FLUOR AND IS LENT TO THE BORROWER FOR THEIR
CONFIDENTIAL USE ONLY, AND IN CONSIDERATION OF THE LOAN OF THIS
DRAWING, THE BORROWER PROMISES AND AGREES TO RETURN IT UPON
REQUEST AND AGREES THAT IT WILL NOT BE REPRODUCED, COPIED LENT
OR OTHERWISE DISPOSED OF DIRECTLY OR INDIRECTLY, NOR USED FOR
ANY OTHER PURPOSE OTHER THAN WHICH IT IS FURNISHED.
NONE
Apr 2011
240K-C2-
3220
H
TI
BRG
FRONT
H, P2
HH, P1
3220
G
TI
3220
H
TE
3220
G
TE
SAFETY
INTERLOCKS
BRG
REAR
H, P2
HH, P1
BRG
FRONT
AFD
BRG
REAR
P2
RHS
3220
XA
+
SEC. CRUSHER PRODUCT
SECONDARY CRUSHER NO.8,
C2-3220-CR-024
4127 3200-25J-024
SEC. CRUSHER PRODUCT
SECONDARY CRUSHER NO.7,
C2-3220-CR-023
4132 3200-25J-038
3220
04618
FIT
3220
04618
FIC
M
C2-3220-ZE-009
SIZE:
C2-3220-ZE-009
CV-026 BELT RIP DETECTOR
ES
3220
04653
TI
H, P2
HH, P1
V
3220
04651
VE
3220
04651
VI
H, P2
HH, P1
3220
04652
LA L, P2
3220
04651
VT
3220
04652
LSL
3220
04652
LE
04643
TE
3220
04643
TI
H, P2
HH, P1
V
3220
04642
LA
3220
04641
VI
3220
04642
LE
3220
04641
VT
3220
04642
LSL
3220
04641
VE
3220
04633
TI
H, P2
HH, P1
04633
TE
V
3220
04631
VE
3220
04631
VI
3220
04632
LA
3220
04632
LE
3220
04632
LSL
3220
04631
VT
C2-3220-MD-018
ES
CONT.
H, P2
HH, P1
L, P2
V V
ES
V V
V
V V
V
ES
L, P2
H, P2
HH, P1
V V
V V
ES
VENDOR
SENSOR GUARD
E D
C
F
J H
G
K
A-K
A-K
A-K A-K
A
A-B
A-B
A-B
A-B
NOTE 1
NOTE:
1 IN INSTRUMENT NUMBERING SUFFIXES LETTER 'I' AND 'O' ARE NOT USED
B
3220
04618
FV
+
3220
04618
FF
+
3220
04653
TE
D
4
F
B
A
3
2
1 5 6 8
E
7
C
REV.
APPROVED
CHK.
DES.
REV. DATE REVISION DESCRIPTION
CLIENT
LEAD ENGINEER
SCALE DRAWING NUMBER
CHECK DESIGN CHECK DRAWING
DESIGNED BY DRAWN BY
APPROVAL DATE
APPROVAL DATE
APPROVED
CHK.
DES.
REV. DATE REVISION DESCRIPTION REFERENCE DRAWING No.
1:100
0
1:200
5m
10m
0
5m
10m
15m
20m
1:500
10m
0
20m
30m
40m
50m
1:1000
0
100m
50m
1:20
0
0.5m
1m
1.5m
2m
0
1:25
0.5m
1m
1.5m
1:33
1/3
2.5m
2m
0
1m
2m
3m
0
1:50
1m
2m
3m
4m
5m
CAD FILE NAME: P:0CAD000SPEM**
MODEL UPDATED:
DWG. FILE UPDATED:
MANUAL CHANGES MADE: YES NO YES NO YES NO
PROJECT MANAGER
ENGINEERING MANAGER
AREA PROJECTENGINEER
REFERENCE DRAWINGS
SAFETY SHARE:
APPROVAL DATE
CONTRACT
NO.
SAFETY SHARE :
BA6CVA1.IGR
NOTICE: THIS DRAWING HAS NOT BEEN PUBLISHED AND IS THE SOLE
PROPERTY OF FLUOR AND IS LENT TO THE BORROWER FOR THEIR
CONFIDENTIAL USE ONLY, AND IN CONSIDERATION OF THE LOAN OF THIS
DRAWING, THE BORROWER PROMISES AND AGREES TO RETURN IT UPON
REQUEST AND AGREES THAT IT WILL NOT BE REPRODUCED, COPIED LENT
OR OTHERWISE DISPOSED OF DIRECTLY OR INDIRECTLY, NOR USED FOR
ANY OTHER PURPOSE OTHER THAN WHICH IT IS FURNISHED.
NONE
Apr 2011
240K-C2-
DUST
C2-3220-ST-131
1416 3200-25J-027
DUST
C2-3220-ST-132
1417 3200-25J-031
DUST
C2-3220-ST-133
1418 3200-25J-032
DUST
C2-3220-CV-016
1419 3200-25J-045
DUST
C2-3220-ST-134
1421 3200-25J-033
DUST
C2-3220-ST-135
1422 3200-25J-034
DUST
C2-3220-ST-136
1423 3200-25J-035
DUST
C2-3220-CV-026
1424 3200-25J-046
AG
KM
LT
ISSUED FOR CLIENT REVIEW
23-Dec-11
B
RP
ISSUED FOR COMBINED REVIEW
23-Jun-11
A
12/23/2011
K.MUNDY
A.GUNSON
T. OH
L.TAMELIN
12/23/2011
2:50:21
PM
WBS: 3220
B
PIPING AND INSTRUMENTATION DIAGRAM
SECONDARY CRUSHING
3200-25J-047
SECONDARY CRUSHING DUST COLLECTORS
3220
04792
XA FAULT
3220
04792
II
ST/SP
3220
04793
II
FAULT
ST/SP
3220
04793
HS
3220
04796
XA
C2-3220-DC-121
3220
04793
XA
3220
04796
II
M
TO ATMOSPHERE
3220
04792
HS
3220
04797
II
C2-3220-FA-121
ST/SP
3220
04797
HS
C2-3220-DC-123
3220
04797
XA
FAULT
TO ATMOSPHERE
3220
04796
HS
ST/SP
C2-3220-FA-123
FAULT
3220
04782
XA FAULT
M
3220
04782
II
ST/SP
3220
04783
II
FAULT
ST/SP
3220
04783
HS
3220
04786
XA
3220
04783
XA
3220
04786
II
3220
04782
HS
3220
04787
II
ST/SP
M
3220
04787
HS
3220
04787
XA
3220
04786
HS
M
C2-3220-CV-026
C2-3220-CV-026
C2-3220-CV-026
C2-3220-CV-026
C2-3220-CV-016
C2-3220-CV-016
C2-3220-DC-051
C2-3220-CV-016
SIZE:
MOTOR:
C2-3220-ZV-085
SEC. CRUSHER DUST COLLECTOR ROTARY VALVE NO.8
SIZE:
C2-3220-FA-031
SECONDARY CRUSHER DUST COLLECTOR FAN NO. 8
TO ATMOSPHERE
SIZE:
MATERIAL:
MOTOR:
C2-3220-DC-051
SECONDARY CRUSHER DUST COLLECTOR NO. 8
C2-3220-FA-031
C2-3220-DC-152
SIZE:
MATERIAL:
MOTOR:
C2-3220-DC-031
SECONDARY CRUSHER DUST COLLECTOR NO. 4
TO ATMOSPHERE
SIZE:
C2-3220-FA-027
SECONDARY CRUSHER DUST COLLECTOR FAN NO. 4
C2-3220-FA-152
SIZE:
C2-3220-FA-153
SECONDARY CRUSHER DUST COLLECTOR FAN NO. 7
FAULT
SIZE:
C2-3220-FA-152
SECONDARY CRUSHER DUST COLLECTOR FAN NO. 6
ST/SP
SIZE:
C2-3220-FA-151
SECONDARY CRUSHER DUST COLLECTOR FAN NO. 5
M
FAULT
FAULT
SIZE:
MATERIAL:
MOTOR:
C2-3220-DC-153
SECONDARY CRUSHER DUST COLLECTOR NO. 7
ST/SP
SIZE:
MATERIAL:
MOTOR:
C2-3220-DC-152
SECONDARY CRUSHER DUST COLLECTOR NO. 6
3220
04798
XA
FAULT
SIZE: 224,300 Nm3/h
MATERIAL:
MOTOR:
C2-3220-DC-151
SECONDARY CRUSHER DUST COLLECTOR NO. 5
M
3220
04798
II
SIZE:
MOTOR:
C2-3220-ZV-153
SEC. CRUSHER DUST COLLECTOR ROTARY VALVE NO.7
3220
04799
II
3220
04794
XA
SIZE:
MOTOR:
C2-3220-ZV-152
SEC. CRUSHER DUST COLLECTOR ROTARY VALVE NO.6
ST/SP
3220
04794
II
SIZE:
MOTOR:
C2-3220-ZV-151
SEC. CRUSHER DUST COLLECTOR ROTARY VALVE NO.5
C2-3220-DC-031
3220
04799
HS
3220
04795
II
C2-3220-ZV-153
TO ATMOSPHERE
3220
04799
XA
ST/SP
C2-3220-ZV-152
C2-3220-FA-027
3220
04798
HS
3220
04795
HS
C2-3220-ZV-151
C2-3220-DC-122
3220
04795
XA
C2-3220-ZV-085
TO ATMOSPHERE
3220
04794
HS
FAULT
C2-3220-FA-122
SIZE:
C2-3220-FA-123
SECONDARY CRUSHER DUST COLLECTOR FAN NO. 3
ST/SP
SIZE:
C2-3220-FA-122
SECONDARY CRUSHER DUST COLLECTOR FAN NO.2
FAULT
SIZE:
C2-3220-FA-121
SECONDARY CRUSHER DUST COLLECTOR FAN NO. 1
FAULT
SIZE:
MATERIAL:
MOTOR:
C2-3220-DC-123
SECONDARY CRUSHER DUST COLLECTOR NO. 3
3220
04788
XA
ST/SP
SIZE:
MATERIAL:
MOTOR:
C2-3220-DC-122
SECONDARY CRUSHER DUST COLLECTOR NO. 2
3220
04788
II
FAULT
SIZE:
MATERIAL:
MOTOR:
C2-3220-DC-121
SECONDARY CRUSHER DUST COLLECTOR NO. 1
3220
04789
II
SIZE:
MOTOR:
C2-3220-ZV-123
SEC. CRUSHER DUST COLLECTOR ROTARY VALVE NO.3
M
ST/SP
3220
04784
XA
SIZE:
MOTOR:
C2-3220-ZV-122
SEC. CRUSHER DUST COLLECTOR ROTARY VALVE NO.2
3220
04789
HS
3220
04784
II
SIZE:
MOTOR:
C2-3220-ZV-121
SEC. CRUSHER DUST COLLECTOR ROTARY VALVE NO.1
3220
04789
XA
3220
04785
II
C2-3220-ZV-123
3220
04788
HS
ST/SP
C2-3220-ZV-122
3220
04785
HS
C2-3220-ZV-121
3220
04785
XA
C2-3220-ZV-084
SIZE:
MOTOR:
C2-3220-ZV-084
SEC. CRUSHER DUST COLLECTOR ROTARY VALVE NO.4
3220
04784
HS
C2-3220-DC-151
TO ATMOSPHERE
C2-3220-FA-151
M
C2-3220-DC-153
FAULT
TO ATMOSPHERE
ST/SP
C2-3220-FA-153
FAULT
DUST
SECONDARY CRUSHER
DISCHARGE CONVEYOR NO.1,
3457 3200-25J-045
DUST
SECONDARY CRUSHER
DISCHARGE CONVEYOR NO.1,
3458 3200-25J-045
DUST
SECONDARY CRUSHER
DISCHARGE CONVEYOR NO.1,
3459 3200-25J-045
DUST
SECONDARY CRUSHER
DISCHARGE CONVEYOR NO.1,
3460 3200-25J-045
DUST
SECONDARY CRUSHER
DISCHARGE CONVEYOR NO.2,
3461 3200-25J-046
DUST
SECONDARY CRUSHER
DISCHARGE CONVEYOR NO.2,
3462 3200-25J-046
DUST
SECONDARY CRUSHER
DISCHARGE CONVEYOR NO.2,
3463 3200-25J-046
DUST
SECONDARY CRUSHER
DISCHARGE CONVEYOR NO.2,
3464 3200-25J-046
C2-3220-CV-016
DUST
C2-3220-ST-137
3769 3200-25J-038
DUST
C2-3220-ST-138
3773 3200-25J-039
DUST
C2-3220-ST-141
4111 3200-25J-027
DUST
C2-3220-ST-142
4118 3200-25J-031
DUST
C2-3220-ST-143
4154 3200-25J-032
DUST
C2-3220-ST-145
4159 3200-25J-034
DUST
C2-3220-ST-146
4160 3200-25J-035
DUST
C2-3220-ST-147
4161 3200-25J-038
DUST
CV-013-DISCHARGE CHUTE
C2-3210-ST-040
3420 3200-25J-005
DUST
C2-3220-ST-144
4124 3200-25J-033
DUST
C2-3220-ST-148
4150 3200-25J-039
DUST
CV-023 DISCHARGE CHUTE
C2-3210-ST-049
3424 3200-25J-006
VENDOR VENDOR VENDOR VENDOR
VENDOR
VENDOR
VENDOR
VENDOR
3220
04701
PDAH
3220
04702
PDAH
3220
04703
PDAH
3220
04704
PDAH
3220
04714
PDAH
3220
04713
PDAH
3220
04712
PDAH
3220
04711
PDAH
M
T5
RHS
LHS
LHS
RHS
AIR
CANNON
AIR
CANNON
3230
04826 A
TI HH, P2
H, P1
3230
04838 B
KL
3230
04835 A
LSH
3230
04823
SI
3230
04892 G
TE
3230
04819
PDAH
3230
04836
LI
3230
04881
XA
3230
04824
ZSHH
A,B
3230
04827 A
TI
3230
04823 B
SE
C,D
3230
04827 B
TI
HH, P1
H,P2
3230
04836 A
LI
3230
04825
ZAH
P1
3230
04835 A
LAH P1
3230
04823
SDI
3230
04823 A
SI
3230
04892 H
TE
3230
04825
ZSHH
3230
04821
HSA
3230
04881
HS
3230
04881
II
3230
04817
LSL
3230
04816 A
LI
3230
04826 B
TI
HH, P1
H,P2
3230
04823 B
ST
3230
04824
ZAH
3230
04823 A
SE
3230
04823 A
ST
3230
04827 B
TE
RHS
C,D
RHS
3230
04818 B
KL
3230
04828 B
XS
3230
04816
LT
3230
04892 G
TI
BRG
FRONT
H,P2
HH,P1
3200
04824
ZAH
3230
04816
LIC
3230
04892
XA FAULT
3230
04821
HSS
3230
04836
LE
3230
04826 A
TE
3230
04892 H
TI
C,D
BRG
REAR
H,P2
HH,P1
3230
04818 A
KL
3230
04826 B
TE
3230
04825
ZSHH
3230
04827 A
TE
3230
04822
HSS
3230
04836
LT
3230
04892
II
3230
04822
HSA
3230
04824
ZSHH
3230
04825
ZAH
3230
04828
XA
3230
04816
LE
3230
04828 A
XS
A,B
3230
04838 A
KL
AIR
CANNON
3230
04817
LAL
P1
HPGR FEED
HPGR FEED CONVEYOR NO.1,
C2-3230-CV-050
1358 3200-25J-049
HPGR DISCHARGE
HPGR SPEED CONTROL,
C2-3230-CR-015
1362 3200-25J-049
HPGR FEED
TERTIARY CRUSHER SURGE
BIN FEED CONVEYOR NO.1,
1816 3200-25J-025
DUST
HPGR DUST COLLECTOR
NO.1, C2-3230-DC-041
1356 3200-25J-064
CONVEYOR WEIGHT
HPGR FEED CONTROL,
C2-3230-CV-050
1825
3200-25J-049
HPGR FEED
HPGR SURGE BIN NO.2,
C2-3230-BN-032
2027 3200-25J-050
LHS
H,P2
HH,P1
L, P2
C2-3240-CV-031
RHS
PID 3200-25J-050
LHS
C,D
RHS
P1
A,B
A,B
RHS
P2
A,B
A,B
LHS
RHS
ST/SP
LHS
P1
A,B
A-D
TO BE CONTINUED ON
AIR
CANNON
TEAR
FAULT
HH, P2
H, P1
LHS
H,P2
HH,P1
L, P2
A,B
LHS
P2
A,B
DUCTING
C2-3230-FA-071
C2-3230-ST-181
C2-3230-AV-001 C2-3230-AV-003
3230
04831
XA
+
C2-3230-ST-161
C2-3230-AV-004
C2-3230-DC-071
C2-3230-AV-002
C2-3230-FE-051
C2-3230-BN-031
TO ATMOSPHERE
SIZE:
C2-3230-ST-161
HPGR FEEDER NO. 1 SKIRT
SIZE:
MATERIAL:
CAPACITY:
TRIM:C1A
C2-3230-BN-031
HPGR SURGE BIN NO.1
ES
SIZE:
C2-3230-DC-071
HPGR FEED BIN DUST COLLECTOR
SIZE:
C2-3230-AV-001
HPGR SURGE BIN AIR CANNON NO. 1
ES
SIZE:
C2-3230-AV-004
HPGR SURGE BIN AIR CANNON NO. 4
3220-AP-1091-C1A-2"-N
SIZE:
C2-3230-ST-181
HPGR FEEDER NO. 1 HEAD CHUTE
ES
ES
ES
SIZE:
C2-3230-AV-003
HPGR SURGE BIN AIR CANNON NO. 3
SIZE:
C2-3230-AV-002
HPGR SURGE BIN AIR CANNON NO. 2
AG
KM
LT
ISSUED FOR CLIENT REVIEW
23-Dec-11
B
RP
ISSUED FOR COMBINED REVIEW
23-Jun-11
A
12/23/2011
K.MUNDY
A.GUNSON
T. OH
L.TAMELIN
1/3/2012
2:13:09
PM
WBS: 3230
B
PIPING AND INSTRUMENTATION DIAGRAM
TERTIARY CRUSHING
3200-25J-048
HPGR NO. 1 FEEDER
D
4
F
B
A
3
2
1 5 6 8
E
7
C
REV.
APPROVED
CHK.
DES.
REV. DATE REVISION DESCRIPTION
CLIENT
LEAD ENGINEER
SCALE DRAWING NUMBER
CHECK DESIGN CHECK DRAWING
DESIGNED BY DRAWN BY
APPROVAL DATE
APPROVAL DATE
APPROVED
CHK.
DES.
REV. DATE REVISION DESCRIPTION REFERENCE DRAWING No.
1:100
0
1:200
5m
10m
0
5m
10m
15m
20m
1:500
10m
0
20m
30m
40m
50m
1:1000
0
100m
50m
1:20
0
0.5m
1m
1.5m
2m
0
1:25
0.5m
1m
1.5m
1:33
1/3
2.5m
2m
0
1m
2m
3m
0
1:50
1m
2m
3m
4m
5m
CAD FILE NAME: P:0CAD000SPEM**
MODEL UPDATED:
DWG. FILE UPDATED:
MANUAL CHANGES MADE: YES NO YES NO YES NO
PROJECT MANAGER
ENGINEERING MANAGER
AREA PROJECTENGINEER
REFERENCE DRAWINGS
SAFETY SHARE:
APPROVAL DATE
CONTRACT
NO.
SAFETY SHARE :
BA6CVA1.IGR
NOTICE: THIS DRAWING HAS NOT BEEN PUBLISHED AND IS THE SOLE
PROPERTY OF FLUOR AND IS LENT TO THE BORROWER FOR THEIR
CONFIDENTIAL USE ONLY, AND IN CONSIDERATION OF THE LOAN OF THIS
DRAWING, THE BORROWER PROMISES AND AGREES TO RETURN IT UPON
REQUEST AND AGREES THAT IT WILL NOT BE REPRODUCED, COPIED LENT
OR OTHERWISE DISPOSED OF DIRECTLY OR INDIRECTLY, NOR USED FOR
ANY OTHER PURPOSE OTHER THAN WHICH IT IS FURNISHED.
NONE
Apr 2011
240K-C2-
AFD
SIZE:
MOTOR:
C2-3230-FE-051
HPGR CRUSHER FEEDER NO. 1
SIZE:
MOTOR:
C2-3230-FA-071
HPGR FEED BIN DUST COLLECTOR FAN
C2-3230-ZM-068
SIZE:
MOTOR:
C2-3230-ZM-068
SPILE BAR INSERTION UNIT - CRUSHING
V
V
V V V
V
3230
04825
ZSH
3230
04824
ZSH
V
V
V
V
3230
04824
ZAHH
3230
04825
ZAHH
P1
P1
LHS
RHS
V
V
V
V
3230
04825
ZSH
3230
04824
ZSH
3230
04825
ZAHH
3230
04824
ZAHH
V
V
V
V
P1
P1
P2 P2 V
V
V V
3230
04835 B
LSH
3230
04835 B
LAH P1
ES
M
3230
04883
XA
3230
04883
HS
3230
04883
II
ST/SP
FAULT
C2-3230-DC-072
TO ATMOSPHERE
C2-3230-FA-072
SIZE:
C2-3230-DC-072
HPGR FEED BIN DUST COLLECTOR
SIZE:
MOTOR:
C2-3230-FA-072
HPGR FEED BIN DUST COLLECTOR FAN
3230-AP-1294-C1A-2"-N
PLANT AIR
GRINDING AREA PLANT AIR
DISTRIBUTION HEADER
2995 3200-25J-017
PLANT AIR
4153
VENDOR
VENDOR
3230
04820
PDAH
ES
3230
04903 A
ST
3230
04903 A
SE
3230
04907 B
TE
HH, P1
H, P2
3230
04909
NA
P1
3230
04909
NS
3230
34981 H
TI
3230
34981 G
TE
3230
34981 G
TI
BRG
FRONT
H, P2
HH, P1
3230
34981 H
TE
BRG
REAR
H, P2
HH, P1
3230
34982 H
TE
3230
34982 G
TE
3230
34982 G
TI
3230
34982 H
TI
BRG
FRONT
H, P2
HH, P1
3230
04916
LI
3230
04916
LIT
3230
04916
LE
3230
04982
II
3230
04982
HS
J/SP
3230
04982
XA
H, P2
L, P2
LL, P1
3230
04932
FS
3230
04932
FA
3230
04932
XL
3230
04915 B
LAH
3230
04906 B
TI HH, P1
H, P2
3230
04906 B
TE
3230
04904
ZAH RHS
P2
3230
04903 B
ST
3230
04902
HSA
3230
04915 B
LSH
3230
04903 B
SE
3230
04901
HSA
3230
04901
HSS
3230
04905
ZSHH
3230
04902
HSS
LHS
A,B
3230
04905
ZSH
3230
04903
SDI
3230
04908 B
XS
3230
04904
ZSHH
3230
04908 A
XS
3230
04904
ZSH
A,B
3230
04903 B
SI
3230
04917
LIC
3230
04907 A
TI
3230
04903 A
SI
3230
04907 A
TE
HH, P1
H, P2
3230
04907 B
TI
3230
04910
WIC
H, P2
HH, P2
L, P2
LL, P2
3230
04906 A
TI HH, P1
H, P2
3230
04906 A
TE
A-B
3230
04910
WIT
3230
04917
LE
3230
04905
ZAH
3230
04910
WE
3230
04931
AI
3230
04931
AT
A,B
A,B
RHS
P2
H, P1
P1
P1
RHS
A,B
I
M
A
G
E
BRG
REAR
H, P2
HH, P1
RHS LHS
RHS
LHS RHS
A-B
P1
LHS
A,B
C2-3230-CV-050
C2-3230-ST-241
C2-3230-CR-015
C2-3230-ST-215
C2-3230-SL-051
C2-3230-ST-221
C2-3230-MD-031 C2-3230-PP-044
C2-3230-ST-197
C2-3230-DV-031
3230
04932
XA
+
D
4
F
B
A
3
2
1 5 6 8
E
7
C
REV.
APPROVED
CHK.
DES.
REV. DATE REVISION DESCRIPTION
CLIENT
LEAD ENGINEER
SCALE DRAWING NUMBER
CHECK DESIGN CHECK DRAWING
DESIGNED BY DRAWN BY
APPROVAL DATE
APPROVAL DATE
APPROVED
CHK.
DES.
REV. DATE REVISION DESCRIPTION REFERENCE DRAWING No.
1:100
0
1:200
5m
10m
0
5m
10m
15m
20m
1:500
10m
0
20m
30m
40m
50m
1:1000
0
100m
50m
1:20
0
0.5m
1m
1.5m
2m
0
1:25
0.5m
1m
1.5m
1:33
1/3
2.5m
2m
0
1m
2m
3m
0
1:50
1m
2m
3m
4m
5m
CAD FILE NAME: P:0CAD000SPEM**
MODEL UPDATED:
DWG. FILE UPDATED:
MANUAL CHANGES MADE: YES NO YES NO YES NO
PROJECT MANAGER
ENGINEERING MANAGER
AREA PROJECTENGINEER
REFERENCE DRAWINGS
SAFETY SHARE:
APPROVAL DATE
CONTRACT
NO.
SAFETY SHARE :
BA6CVA1.IGR
NOTICE: THIS DRAWING HAS NOT BEEN PUBLISHED AND IS THE SOLE
PROPERTY OF FLUOR AND IS LENT TO THE BORROWER FOR THEIR
CONFIDENTIAL USE ONLY, AND IN CONSIDERATION OF THE LOAN OF THIS
DRAWING, THE BORROWER PROMISES AND AGREES TO RETURN IT UPON
REQUEST AND AGREES THAT IT WILL NOT BE REPRODUCED, COPIED LENT
OR OTHERWISE DISPOSED OF DIRECTLY OR INDIRECTLY, NOR USED FOR
ANY OTHER PURPOSE OTHER THAN WHICH IT IS FURNISHED.
NONE
Apr 2011
240K-C2-
C2-3230-ES-031
VENDOR
TEAR
3230
04917
LIT
DUCTING
VENDOR
VENDOR
MOTOR CONTROL SYSTEM
CRUSHER LUBRICATION
AND COOLING SYSTEM
3230
34983
II
3230
34983
XA
3230
34983
HS
FAULT
J/SP
P.O NO.:
VENDOR DWG NO.:
VENDOR:
P.O NO.:
VENDOR DWG NO.:
VENDOR:
HPGR FEED
HPGR CRUSHER FEEDER
NO.1, C2-3230-FE-051
1358 3200-25J-048
3200-LIC-04816
BIN LEVEL CONTROL,
C2-3230-BN-031
1362
3200-25J-048
3230
04910
SE
3230
34982
II
3230
34982
XA
3230
34982
HS
FAULT
J/SP
AFD
3230
34981
II
3230
34981
XA
3230
34981
HS
FAULT
J/SP
AFD
FC
V1
3230
04981
II
3230
04981
XA
3230
04981
HS
FAULT
J/SP
3230
04908
XA
P1
RHS
LHS
3230
04915 B
LE
3230
04915 A
LAH
3230
04915 A
LSH
P1
3230
04915 A
LE
CRUSHER FEEDER
HPGR FEED CONTROL,
C2-3230-FE-051
1825
3200-25J-048
DUST
HPGR DUST COLLECTOR,
C2-3230-DC-0162
1826 3200-25J-064
TER CRUSHER PRODUCT
CV-015 DISCHARGE
CONVEYOR NO.1,
1360 3200-25J-073
C2-3230-CV-017
T3
T8
T1
T3
SIZE:
C2-3230-ST-197
CR-015 DIVERTER CHUTE
SIZE:
C2-3230-ST-221
CR-015 FEED CHUTE
V
3230-SL-1013-C1B-6"-N
ES
ES
SIZE:
C2-3230-MD-031
CR-015 METAL DETECTOR
ES
V
V
ES
ES
SIZE:
C2-3230-DV-031
CR-015 FEED DIVERTER DRIVE
SIZE:
MATERIAL:
MOTOR:
C2-3230-PP-044
HPGR AREA SUMP PUMP NORTH
SIZE:
C2-3230-CR-015
HPGR NO.1
V
SIZE:
C2-3230-SL-051
CR-015 FEED CONVEYOR BELT SCALE
SIZE:
MATERIAL:
MOTOR:
C2-3230-CV-050
CR-015 FEED CONVEYOR
ES
ES
SIZE:
C2-3230-ES-031
HPGR EYEWASH STATION
SIZE:
C2-3230-ST-215
CR-015 FEED CONVEYOR HEAD CHUTE
V
ES
V
SIZE:
C2-3230-ST-241
CR-015 DISCHARGE CHUTE
DOMESTIC WATER
2781 5400-25J-022
AG
KM
LT
ISSUED FOR CLIENT REVIEW
23-Dec-11
B
RP
ISSUED FOR COMBINED REVIEW
23-Jun-11
A
12/23/2011
K.MUNDY
A.GUNSON
T. OH
L.TAMELIN
1/3/2012
2:13:35
PM
WBS: 3230
B
PIPING AND INSTRUMENTATION DIAGRAM
TERTIARY CRUSHING
3200-25J-049
HPGR NO. 1
A,B
FAULT
RHS LHS
V
V
V
V V
V V
V
V
3230
04904
ZAHH
3230
04905
ZAHH
A,B
P1
P1
3230-WD-1033-G1A-1"-N
TER CRUSHER SUMP
COOLING WATER RETURN
PUMPBOX, C2-3230-BX-030
3671 3200-25J-079
GEAR
REDUCER
3230
04921
VE
3230
04921
VT
3230
04921
VI
3230
04922
LE
3230
04922
LSL
3230
04922
LA
3230
04923
TE
3230
04923
TI
V
V
V V
V
L, P2
H, P2
HH, P1
H, P2
HH, P1
T3
ES
ES
VENDOR
V
DUST
HPGR DUST COLLECTOR,
C2-3230-DC-163
4168 3200-25J-064
HPGR FEED BYPASS
C2-3230-CV-017
4169 3200-25J-073
CONVEYOR
DUCTING
DUST
HPGR DUST COLLECTOR,
C2-3230-DC-0161
4171 3200-25J-064
DUCTING
AFD
T5
A, B
M
AIR
CANNON
AIR
CANNON
3230
05006 B
TI
3230
05007 A
TE
3230
05015 A
LAH
3230
05082
II
3230
05019
PDAH
3230
05003 B
SI
3230
05003 A
SI
3230
05018 A
KL
3230
05038 A
KL
AIR
CANNON
3230
05081
HS
3230
05006 A
TE
3230
05008 A
XS
TEAR
3230
05036 A
LI
3230
05017
LSL
3230
05016
LE
3230
05006 B
TE
3230
05008
XA
3230
05008 B
XS
3230
05001
HSA
3230
05082 G
TI
3230
05017
LAL
P1
3230
05016 A
LI
3230
05038 B
KL
3230
05007 A
TI
3230
05001
HSS
3230
05036
LI
3230
05036
LT
3230
05082 H
TE
3230
05002
HSS
3230
05018 B
KL
3230
05016
LT
3230
05081
II
3230
05015 A
LSH
3230
05003 B
ST
3230
05016
LIC
3230
05082 G
TE
3230
05003 B
SE
3230
05006 A
TI HH, P2
H, P1
3230
05003
SDI
3230
05082
XA FAULT
3230
05081
XA
3230
05036
LE
3230
05003 A
SE
3230
05082 H
TI
BRG
REAR
H,P2
HH,P1
3230
05002
HSA
3230
05003 A
ST
3230
05007 B
TE
3230
05007 B
TI
HPGR DISCHARGE
HPGR SPEED CONTROL,
C2-3250-CR-016
1992 3200-25J-051
CONVEYOR WEIGHT
HPGR FEED CONTROL,
C2-3230-CV-051
2000
3200-25J-051
HPGR FEED
HPGR FEED CONVEYOR NO.2,
C2-3230-CV-051
1998 3200-25J-051
DUST
HPGR DUST COLLECTOR,
C2-3230-DC-041
2025 3200-25J-064
HPGR FEED
HPGR FEED SURGE BIN NO.3,
C2-3230-BN-033
2059 3200-25J-052
HPGR FEED
TERTIARY CRUSHER SURGE
BIN FEED CONVEYOR NO.1,
2027 3200-25J-048
PLANT AIR
2028 3900-25J-021
AFD
LHS
PID 3200-25J-052
TO BE CONTINUED ON
PID 3200-25J-048
TO BE CONTINUED ON
BRG
FRONT
H,P2
HH,P1
H,P2
HH,P1
L, P2
H,P1
HH, P1
H, P2
P1
RHS
A,B
LHS
RHS LHS
RHS
FAULT
ST/SP
HH, P2
H, P1
DUCTING
C2-3240-CV-031
P1
LHS
A,B
P1
P1
RHS
AIR
CANNON
HH, P1
H, P2
H,P2
HH,P1
L, P2
SIZE:
C2-3230-ST-182
HPGR FEEDER NO. 2 HEAD CHUTE
AG
KM
LT
ISSUED FOR CLIENT REVIEW
23-Dec-11
B
RP
ISSUED FOR COMBINED REVIEW
23-Jun-11
A
12/23/2011
K. MUNDY
A. GUNSON
T. OH
L. TAMELIN
1/3/2012
2:16:04
PM
WBS: 3230
B
PIPING AND INSTRUMENTATION DIAGRAM
TERTIARY CRUSHING
3200-25J-050
HPGR NO. 2 FEEDER
SIZE:
C2-3230-AV-005
HPGR SURGE BIN AIR CANNON NO. 5
C2-3230-ST-162
SIZE:
C2-3230-AV-006
HPGR SURGE BIN AIR CANNON NO. 6
C2-3230-AV-006
TO ATMOSPHERE
SIZE:
C2-3230-AV-008
HPGR SURGE BIN AIR CANNON NO. 8
C2-3230-AV-008
C2-3230-FA-073
C2-3230-DC-073
SIZE:
MOTOR:
C2-3230-FE-052
HPGR CRUSHER FEEDER NO. 2
SIZE:
MOTOR:
C2-3230-FA-073
HPGR FEED BIN DUST COLLECTOR FAN
3220-AP-1089-C1A-2"-N
SIZE:
MATERIAL:
CAPACITY:
TRIM:C1A
C2-3230-BN-032
HPGR SURGE BIN NO.2
C2-3230-AV-007
C2-3230-AV-005
C2-3230-BN-032
SIZE:
C2-3230-AV-007
HPGR SURGE BIN AIR CANNON NO. 7
C2-3230-ST-182
SIZE:
C2-3230-ST-162
HPGR FEEDER NO. 2 SKIRTS
C2-3230-FE-052
SIZE:
C2-3230-DC-073
HPGR FEED BIN DUST COLLECTOR
ES
ES
ES
ES
ES
D
4
F
B
A
3
2
1 5 6 8
E
7
C
REV.
APPROVED
CHK.
DES.
REV. DATE REVISION DESCRIPTION
CLIENT
LEAD ENGINEER
SCALE DRAWING NUMBER
CHECK DESIGN CHECK DRAWING
DESIGNED BY DRAWN BY
APPROVAL DATE
APPROVAL DATE
APPROVED
CHK.
DES.
REV. DATE REVISION DESCRIPTION REFERENCE DRAWING No.
1:100
0
1:200
5m
10m
0
5m
10m
15m
20m
1:500
10m
0
20m
30m
40m
50m
1:1000
0
100m
50m
1:20
0
0.5m
1m
1.5m
2m
0
1:25
0.5m
1m
1.5m
1:33
1/3
2.5m
2m
0
1m
2m
3m
0
1:50
1m
2m
3m
4m
5m
CAD FILE NAME: P:0CAD000SPEM**
MODEL UPDATED:
DWG. FILE UPDATED:
MANUAL CHANGES MADE: YES NO YES NO YES NO
PROJECT MANAGER
ENGINEERING MANAGER
AREA PROJECTENGINEER
REFERENCE DRAWINGS
SAFETY SHARE:
APPROVAL DATE
CONTRACT
NO.
SAFETY SHARE :
BA6CVA1.IGR
NOTICE: THIS DRAWING HAS NOT BEEN PUBLISHED AND IS THE SOLE
PROPERTY OF FLUOR AND IS LENT TO THE BORROWER FOR THEIR
CONFIDENTIAL USE ONLY, AND IN CONSIDERATION OF THE LOAN OF THIS
DRAWING, THE BORROWER PROMISES AND AGREES TO RETURN IT UPON
REQUEST AND AGREES THAT IT WILL NOT BE REPRODUCED, COPIED LENT
OR OTHERWISE DISPOSED OF DIRECTLY OR INDIRECTLY, NOR USED FOR
ANY OTHER PURPOSE OTHER THAN WHICH IT IS FURNISHED.
NONE
Apr 2011
240K-C2-
M
TO ATMOSPHERE
C2-3230-DC-074
FAULT
ST/SP
3230
05083
II
3230
05083
HS
3230
05083
XA
C2-3230-FA-074
V V
V V
V
V
V
V V
V
LHS
RHS
A,B
P1 P1
V
V
3230
05005
ZAHH
3230
05004
ZAHH
3230
05004
ZSH
RHS
A,B
3230
05004
ZSHH
LHS
A,B
3230
05005
ZAH
3230
05004
ZAH
A,B
LHS
RHS
V
V
3230
05005
ZSH
A,B
3230
05005
ZSHH
P2
P2 V
V
V V
3230
05015 B
LAH
3230
05015 B
LSH
P1
RHS
V
V
3230
05005
ZSH
C,D
3230
05005
ZSHH
LHS
P2
P2
P1 P1
V
V
3230
05005
ZAHH
3230
05004
ZAHH
3230
05004
ZSH
RHS
C,D
3230
05004
ZSHH
LHS
C,D
3230
05005
ZAH
3230
05004
ZAH
C.D
SIZE:
MOTOR:
C2-3230-FA-074
HPGR FEED BIN DUST COLLECTOR FAN
SIZE:
C2-3230-DC-074
HPGR FEED BIN DUST COLLECTOR
ES
3230-AP-1295-C1A-2"-N
A-D
3230
05011
XA
+
PLANT AIR
PLANT AIR DISTRIBUTION
HEADER
2996 3200-25J-017
3230
05020
PDAH
VENDOR
VENDOR
ES
D
4
F
B
A
3
2
1 5 6 8
E
7
C
REV.
APPROVED
CHK.
DES.
REV. DATE REVISION DESCRIPTION
CLIENT
LEAD ENGINEER
SCALE DRAWING NUMBER
CHECK DESIGN CHECK DRAWING
DESIGNED BY DRAWN BY
APPROVAL DATE
APPROVAL DATE
APPROVED
CHK.
DES.
REV. DATE REVISION DESCRIPTION REFERENCE DRAWING No.
1:100
0
1:200
5m
10m
0
5m
10m
15m
20m
1:500
10m
0
20m
30m
40m
50m
1:1000
0
100m
50m
1:20
0
0.5m
1m
1.5m
2m
0
1:25
0.5m
1m
1.5m
1:33
1/3
2.5m
2m
0
1m
2m
3m
0
1:50
1m
2m
3m
4m
5m
CAD FILE NAME: P:0CAD000SPEM**
MODEL UPDATED:
DWG. FILE UPDATED:
MANUAL CHANGES MADE: YES NO YES NO YES NO
PROJECT MANAGER
ENGINEERING MANAGER
AREA PROJECTENGINEER
REFERENCE DRAWINGS
SAFETY SHARE:
APPROVAL DATE
CONTRACT
NO.
SAFETY SHARE :
BA6CVA1.IGR
NOTICE: THIS DRAWING HAS NOT BEEN PUBLISHED AND IS THE SOLE
PROPERTY OF FLUOR AND IS LENT TO THE BORROWER FOR THEIR
CONFIDENTIAL USE ONLY, AND IN CONSIDERATION OF THE LOAN OF THIS
DRAWING, THE BORROWER PROMISES AND AGREES TO RETURN IT UPON
REQUEST AND AGREES THAT IT WILL NOT BE REPRODUCED, COPIED LENT
OR OTHERWISE DISPOSED OF DIRECTLY OR INDIRECTLY, NOR USED FOR
ANY OTHER PURPOSE OTHER THAN WHICH IT IS FURNISHED.
NONE
Apr 2011
240K-C2-
3230
05103 A
ST
3230
05103 A
SE
3230
05107 B
TE
HH, P1
H, P2
3230
05109
NA
P1
3230
05109
NS
3230
35181 H
TI
3230
35181 G
TE
3230
35181 G
TI
BRG
FRONT
H, P2
HH, P1
3230
35181 H
TE
BRG
REAR
H, P2
HH, P1
3230
35182 H
TE
3230
35182 G
TE
3230
35182 G
TI
3230
35182 H
TI
BRG
FRONT
H, P2
HH, P1
3230
05115 B
LAH
3230
05106 B
TI HH, P1
H, P2
3230
05106 B
TE
3230
05104
ZAH RHS
P2
3230
05103 B
ST
3230
05102
HSA
3230
05115 B
LSH
3230
05103 B
SE
3230
05101
HSA
3230
05101
HSS
3230
05105
ZSHH
3230
05102
HSS
LHS
A,B
3230
05105
ZSH
3230
05103
SDI
3230
05108 B
XS
3230
05104
ZSHH
3230
05108 A
XS
3230
05104
ZSH
A,B
3230
05103 B
SI
3230
05117
LIC
3230
05107 A
TI
3230
05103 A
SI
3230
05107 A
TE
HH, P1
H, P2
3230
05107 B
TI
3230
05110
WIC
H, P2
HH, P2
L, P2
LL, P2
3230
05106 A
TI HH, P1
H, P2
3230
05106 A
TE
A-B
3230
05110
WIT
3230
05117
LE
3230
05105
ZAH 3230
05110
WE
3230
05131
AI
3230
05131
AT
A,B
A,B
RHS
P2
H, P1
P1
P1
RHS
A,B
I
M
A
G
E
BRG
REAR
H, P2
HH, P1
RHS LHS
LHS
RHS
RHS
A-B
P1
LHS
A,B
C2-3230-CV-051
C2-3230-ST-242
C2-3230-CR-016
C2-3230-ST-216
C2-3230-SL-052
C2-3230-ST-222
C2-3230-MD-032
C2-3230-ST-198
C2-3230-DV-032
VENDOR
TEAR
3230
05117
LIT
DUCTING
VENDOR
VENDOR
MOTOR CONTROL SYSTEM
CRUSHER LUBRICATION
AND COOLING SYSTEM
3230
35183
II
3230
35183
XA
3230
35183
HS
FAULT
J/SP
SIZE:
MATERIAL:
MOTOR:
C2-3230-CV-051
CR-016 FEED CONVEYOR
SIZE:
C2-3230-DV-032
CR-016 DIVERTER DRIVE
SIZE:
C2-3230-ST-222
CR-016 FEED CHUTE
SIZE:
C2-3230-ST-242
CR-016 DISCHARGE CHUTE
SIZE:
C2-3230-SL-052
CR-016 FEED CONVEYOR BELT SCALE
SIZE:
C2-3230-MD-032
CR-016 METAL DETECTOR
SIZE:
C2-3230-ST-216
CR-016 FEED CONVEYOR HEAD CHUTE
SIZE:
C2-3230-ST-198
CR-016 DIVERTER CHUTE
SIZE:
C2-3230-CR-016
HPGR NO.2
P.O NO.:
VENDOR DWG NO.:
VENDOR:
P.O NO.:
VENDOR DWG NO.:
VENDOR:
3230
05110
SE
3230
35182
II
3230
35182
XA
3230
35182
HS
FAULT
J/SP
AFD
3230
35181
II
3230
35181
XA
3230
35181
HS
FAULT
J/SP
AFD
FC
V1
3230
05181
II
3230
05181
XA
3230
05181
HS
FAULT
J/SP
3230
05108
XA
P1
RHS
LHS
3230
05115 B
LE
3230
05115 A
LAH
3230
05115 A
LSH
P1
3230
05115 A
LE
TER CRUSHER PRODUCT
CR-016 DISCHARGE
CONVEYOR C2-3230-CV-017
1829 3200-25J-073
3230-LIC-05016
BIN LEVEL CONTROL,
C2-3230-BN-032
1992
3200-25J-050
DUST
HPGR DUST COLLECTOR
C2-3230-DC-162
1997 3200-25J-064
HPGR FEED
HPGR CRUSHER FEEDER
NO.2, C2-3230-FE-052
1998 3200-25J-050
CRUSHER FEEDER
HPGR FEED CONTROL,
C2-3230-FE-052
2000
3200-25J-050
T1
T3
T3
ES
V
ES
ES
V
ES
V
V
ES
ES
ES
V
AG
KM
LT
ISSUED FOR CLIENT REVIEW
23-Dec-11
B
RP
ISSUED FOR COMBINED REVIEW
23-Jun-11
A
12/23/2011
K. MUNDY
A. GUNSON
T. OH
L. TAMELIN
12/23/2011
2:54:06
PM
WBS: 3230
B
PIPING AND INSTRUMENTATION DIAGRAM
TERTIARY CRUSHING
3200-25J-051
HPGR NO. 2
A,B
LHS
RHS
V
V V
V V
V
V
3230
05104
ZAHH
3230
05105
ZAHH
A,B
P1
P1
3230
05121
VE
3230
05121
VT
3230
05121
VI
3230
05122
LE
3230
05122
LSL
3230
05122
LA
3230
05123
TE
3230
05123
TI
V
V
V V
V
L, P2
T3
GEAR
REDUCER
H, P2
HH, P1
H, P2
HH, P1
ES
V
VENDOR
DUST
HPGR DUST COLLECTOR,
C2-3230-DC-163
4189 3200-25J-064
DUCTING
HPGR FEED BYPASS
C2-3230-CV-017
4191 3200-25J-073
DUST
HPGR DUST COLLECTOR,
C2-3230-DC-161
4193 3200-25J-064
DUCTING
AFD
M
T5
A,B
A, B
M
AIR
CANNON
AIR
CANNON
3230
05283
HS
3230
05283
II
3230
05283
XA
3230
05204
ZSHH
C.D
3230
05205
ZSH
3230
05205
ZSHH
A,B
3230
05204
ZSHH
A,B
3230
05205
ZAHH
3230
05204
ZAH
P2
3230
05204
ZSH
3230
05205
ZAH
3230
05204
ZAH
P2
3230
05204
ZSH
3230
05204
ZAHH
P1
3230
05205
ZAH
3230
05205
ZSH
3230
05204
ZAHH
P1
3230
05205
ZSHH
C,D
3230
05205
ZAHH
3230
05203
SDI 3230
05208
XA
3230
05206 A
TI HH, P2
H, P1
3230
05206 A
TE
LHS
3230
05282 G
TE
3230
05215 B
LSH
3230
05215 B
LAH
3230
05281
XA
3230
05208 A
XS
TEAR
3230
05217
LSL
3230
05203 B
SE
RHS
3230
05202
HSA
3230
05238 A
KL
AIR
CANNON
3230
05203 A
ST
3230
05236
LE
3230
05207 A
TI
3230
05206 B
TI
3230
05203 A
SE
3230
05203 B
ST
3230
05281
II
3230
05216
LT
3230
05207 B
TE
3230
05236
LI
3230
05281
HS
3230
05282 G
TI
3230
05203 A
SI
3230
05202
HSS
A,B
3230
05207 B
TI
3230
05206 B
TE 3230
05215 A
LSH
3230
05201
HSS
3230
05238 B
KL
3230
05201
HSA
3230
05236 A
LI
3230
05236
LT
3230
05282
II
3230
05203 B
SI
3230
05282
XA FAULT
3230
05282 H
TI
BRG
REAR
H,P2
HH,P1
3230
05219
PDAH
3230
05217
LAL
P1
3230
05215 A
LAH
3230
05208 B
XS
3230
05282 H
TE
3230
05216
LIC
3230
05218 A
KL
3230
05216
LE
3230
05207 A
TE
RHS
3230
05218 B
KL
3230
05216 A
LI
CONVEYOR WEIGHT
HPGR FEED CONTROL,
C2-3230-CV-052
2015
3200-25J-053
HPGR FEED
TERTIARY CRUSHER SURGE
BIN FEED CONVEYOR NO.1,
2059 3200-25J-050
DUST
HPGR DUST COLLECTOR,
C2-3230-DC-041
2053 3200-25J-064
HPGR DISCHARGE
HPGR SPEED CONTROL,
C2-3230-CR-017
2010 3200-25J-053
HPGR FEED
HPGR FEED CONVEYOR NO.3,
C2-3230-CV-052
2013 3200-25J-053
HPGR FEED
HPGR FEED SURGE BIN NO.4,
C2-3230-BN-034
2084 3200-25J-054
ST/SP
FAULT
RHS
LHS
RHS
RHS
A,B
P1
P2
RHS
C,D
LHS
P1
P2
RHS
LHS
A,B
LHS
C,D
LHS
AFD
DUCTING
H,P1 P1
FAULT
TO BE CONTINUED ON
PID 3200-25J-050
HH, P2
H, P1
BRG
FRONT
H,P2
HH,P1
RHS
H,P2
HH,P1
L, P2
HH, P1
H, P2
P1
A-D
HH, P1
H, P2
LHS
ST/SP
LHS
AIR
CANNON
TO BE CONTINUED ON
P1
RHS
A,B
PID 3200-25J-054
H,P2
HH,P1
L, P2
P1
LHS
A,B
C2-3240-CV-031
P1
C2-3230-FE-053
SIZE:
C2-3230-AV-012
HPGR SURGE BIN AIR CANNON NO. 12
TO ATMOSPHERE
AG
KM
LT
ISSUED FOR CLIENT REVIEW
23-Dec-11
B
RP
ISSUED FOR COMBINED REVIEW
23-Jun-11
A
12/23/2011
K. MUNDY
A. GUNSON
T. OH
L. TAMELIN
12/23/2011
2:55:00
PM
WBS: 3230
B
PIPING AND INSTRUMENTATION DIAGRAM
TERTIARY CRUSHING
3200-25J-052
HPGR NO. 3 FEEDER
C2-3230-ST-183
C2-3230-AV-012
C2-3230-ST-163
V
V V
C2-3230-DC-075
SIZE:
C2-3230-AV-011
HPGR SURGE BIN AIR CANNON NO. 11
ES
SIZE:
MOTOR:
C2-3230-FA-076
HPGR FEED BIN DUST COLLECTOR FAN
SIZE:
C2-3230-DC-076
HPGR FEED BIN DUST COLLECTOR
SIZE:
MATERIAL:
CAPACITY:
TRIM:C1A
C2-3230-BN-033
HPGR FEEDSURGE BIN NO.3
SIZE:
C2-3230-DC-075
HPGR FEED BIN DUST COLLECTOR
SIZE:
C2-3230-ST-163
HPGR FEEDER NO. 3 SKIRTS
SIZE:
C2-3230-AV-010
HPGR SURGE BIN AIR CANNON NO. 10
SIZE:
C2-3230-AV-009
HPGR SURGE BIN AIR CANNON NO. 9
C2-3230-BN-033
C2-3230-FA-075
C2-3230-AV-011
SIZE:
C2-3230-ST-183
HPGR FEEDER NO. 3 HEAD CHUTE
3230
05211
XA
+
SIZE:
MOTOR:
C2-3230-FE-053
HPGR CRUSHER FEEDER NO. 3
SIZE:
MOTOR:
C2-3230-FA-075
HPGR FEED BIN DUST COLLECTOR FAN
C2-3230-AV-009
C2-3230-AV-010
ES
ES
ES
ES
ES
3230-AP-1296-C1A-2"-N
3230-AP-1081-C1A-2"-N
V
V
V
V
V
V
V
V
V
V
V
V V
C2-3230-FA-076
TO ATMOSPHERE
C2-3230-DC-076
V V
V
V
V V
D
4
F
B
A
3
2
1 5 6 8
E
7
C
REV.
APPROVED
CHK.
DES.
REV. DATE REVISION DESCRIPTION
CLIENT
LEAD ENGINEER
SCALE DRAWING NUMBER
CHECK DESIGN CHECK DRAWING
DESIGNED BY DRAWN BY
APPROVAL DATE
APPROVAL DATE
APPROVED
CHK.
DES.
REV. DATE REVISION DESCRIPTION REFERENCE DRAWING No.
1:100
0
1:200
5m
10m
0
5m
10m
15m
20m
1:500
10m
0
20m
30m
40m
50m
1:1000
0
100m
50m
1:20
0
0.5m
1m
1.5m
2m
0
1:25
0.5m
1m
1.5m
1:33
1/3
2.5m
2m
0
1m
2m
3m
0
1:50
1m
2m
3m
4m
5m
CAD FILE NAME: P:0CAD000SPEM**
MODEL UPDATED:
DWG. FILE UPDATED:
MANUAL CHANGES MADE: YES NO YES NO YES NO
PROJECT MANAGER
ENGINEERING MANAGER
AREA PROJECTENGINEER
REFERENCE DRAWINGS
SAFETY SHARE:
APPROVAL DATE
CONTRACT
NO.
SAFETY SHARE :
BA6CVA1.IGR
NOTICE: THIS DRAWING HAS NOT BEEN PUBLISHED AND IS THE SOLE
PROPERTY OF FLUOR AND IS LENT TO THE BORROWER FOR THEIR
CONFIDENTIAL USE ONLY, AND IN CONSIDERATION OF THE LOAN OF THIS
DRAWING, THE BORROWER PROMISES AND AGREES TO RETURN IT UPON
REQUEST AND AGREES THAT IT WILL NOT BE REPRODUCED, COPIED LENT
OR OTHERWISE DISPOSED OF DIRECTLY OR INDIRECTLY, NOR USED FOR
ANY OTHER PURPOSE OTHER THAN WHICH IT IS FURNISHED.
NONE
Apr 2011
240K-C2-
PLANT AIR
PLANT AIR DISTRIBUTION
HEADER
2997 3200-25J-017
3230
05220
PDAH
VENDOR
VENDOR
PLANT AIR
4210
ES
D
4
F
B
A
3
2
1 5 6 8
E
7
C
REV.
APPROVED
CHK.
DES.
REV. DATE REVISION DESCRIPTION
CLIENT
LEAD ENGINEER
SCALE DRAWING NUMBER
CHECK DESIGN CHECK DRAWING
DESIGNED BY DRAWN BY
APPROVAL DATE
APPROVAL DATE
APPROVED
CHK.
DES.
REV. DATE REVISION DESCRIPTION REFERENCE DRAWING No.
1:100
0
1:200
5m
10m
0
5m
10m
15m
20m
1:500
10m
0
20m
30m
40m
50m
1:1000
0
100m
50m
1:20
0
0.5m
1m
1.5m
2m
0
1:25
0.5m
1m
1.5m
1:33
1/3
2.5m
2m
0
1m
2m
3m
0
1:50
1m
2m
3m
4m
5m
CAD FILE NAME: P:0CAD000SPEM**
MODEL UPDATED:
DWG. FILE UPDATED:
MANUAL CHANGES MADE: YES NO YES NO YES NO
PROJECT MANAGER
ENGINEERING MANAGER
AREA PROJECTENGINEER
REFERENCE DRAWINGS
SAFETY SHARE:
APPROVAL DATE
CONTRACT
NO.
SAFETY SHARE :
BA6CVA1.IGR
NOTICE: THIS DRAWING HAS NOT BEEN PUBLISHED AND IS THE SOLE
PROPERTY OF FLUOR AND IS LENT TO THE BORROWER FOR THEIR
CONFIDENTIAL USE ONLY, AND IN CONSIDERATION OF THE LOAN OF THIS
DRAWING, THE BORROWER PROMISES AND AGREES TO RETURN IT UPON
REQUEST AND AGREES THAT IT WILL NOT BE REPRODUCED, COPIED LENT
OR OTHERWISE DISPOSED OF DIRECTLY OR INDIRECTLY, NOR USED FOR
ANY OTHER PURPOSE OTHER THAN WHICH IT IS FURNISHED.
NONE
Apr 2011
240K-C2-
3230
05303 A
ST
3230
05303 A
SE
3230
05307 B
TE
HH, P1
H, P2
3230
05309
NA
P1
3230
05309
NS
3230
35381 H
TI
3230
35381 G
TE
3230
35381 G
TI
BRG
FRONT
H, P2
HH, P1
3230
35381 H
TE
BRG
REAR
H, P2
HH, P1
3230
35382 H
TE
3230
35382 G
TE
3230
35382 G
TI
3230
35382 H
TI
BRG
FRONT
H, P2
HH, P1
3230
05315 B
LAH
3230
05306 B
TI HH, P1
H, P2
3230
05306 B
TE
3230
05304
ZAH LHS
P2
3230
05303 B
ST
3230
05302
HSA
3230
05315 B
LSH
3230
05303 B
SE
3230
05301
HSA
3230
05301
HSS
3230
05305
ZSHH
3230
05302
HSS
LHS
A,B
3230
05305
ZSH
3230
05303
SDI
3230
05308 B
XS
3230
05304
ZSHH
3230
05308 A
XS
3230
05304
ZSH
A,B
3230
05303 B
SI
3230
05317
LIC
3230
05307 A
TI
3230
05303 A
SI
3230
05307 A
TE
HH, P1
H, P2
3230
05307 B
TI
3230
05310
WIC
H, P2
HH, P2
L, P2
LL, P2
3230
05306 A
TI HH, P1
H, P2
3230
05306 A
TE
A-B
3230
05310
WIT
3230
05317
LE
3230
05305
ZAH 3230
05310
WE
3230
05331
AI
3230
05331
AT
A,B
A,B
LHS
P2
H, P1
P1
P1
RHS
A,B
I
M
A
G
E
BRG
REAR
H, P2
HH, P1
RHS LHS
LHS
RHS
RHS
A-B
P1
LHS
A,B
C2-3230-CV-052
C2-3230-ST-243
C2-3230-CR-017
C2-3230-ST-217
C2-3230-SL-053
C2-3230-ST-223
C2-3230-MD-033
C2-3230-ST-199
C2-3230-DV-033
VENDOR
TEAR
3230
05317
LIT
DUCTING
VENDOR
VENDOR
MOTOR CONTROL SYSTEM
CRUSHER LUBRICATION
AND COOLING SYSTEM
3230
35383
II
3230
35383
XA
3230
35383
HS
FAULT
J/SP
SIZE:
MATERIAL:
MOTOR:
C2-3230-CV-052
CR-017 FEED CONVEYOR
SIZE:
C2-3230-DV-033
CR-017 FEED DIVERTER DRIVE
SIZE:
C2-3230-ST-223
CR-017 FEED CHUTE
SIZE:
C2-3230-ST-243
CR-017 DISCHARGE CHUTE
SIZE:
C2-3230-SL-053
CR-017 FEED CONVEYOR BELT SCALE
SIZE:
C2-3230-MD-033
CR-017 METAL DETECTOR
SIZE:
C2-3230-ST-217
CR-017 FEED CONVEYOR HEAD CHUTE
SIZE:
C2-3230-ST-199
CR-017 DIVERTER CHUTE
SIZE:
C2-3230-CR-017
HPGR NO.3
P.O NO.:
VENDOR DWG NO.:
VENDOR:
P.O NO.:
VENDOR DWG NO.:
VENDOR:
3230
05310
SE
3230
35382
II
3230
35382
XA
3230
35382
HS
FAULT
J/SP
AFD
3230
35381
II
3230
35381
XA
3230
35381
HS
FAULT
J/SP
AFD
FC
V1
3230
05381
II
3230
05381
XA
3230
05381
HS
FAULT
J/SP
3230
05308
XA
P1
RHS
LHS
3230
05315 B
LE
3230
05315 A
LAH
3230
05315 A
LSH
P1
3230
05315 A
LE
TER CRUSHER PRODUCT
CR-017 DISCHARGE
CONVEYOR, C2-3230-CV-017
1830 3200-25J-073
3230-LIC-05216
BIN LEVEL CONTROL,
C2-3230-BN-033
2010
3200-25J-052
DUST
HPGR DUST COLLECTOR,
C2-3230-DC-162
2012 3200-25J-064
HPGR FEED
HPGR FEEDER NO.3,
C2-3230-FE-053
2013 3200-25J-052
CRUSHER FEEDER
HPGR FEED CONTROL,
C2-3230-FE-053
2015
3200-25J-052
T3
T3
T1
V
ES
V
V
V
V V
ES
ES
V
ES
ES
ES
ES
AG
KM
LT
ISSUED FOR CLIENT REVIEW
23-Dec-11
B
RP
ISSUED FOR COMBINED REVIEW
23-Jun-11
A
12/23/2011
K. MUNDY
A. GUNSON
T. OH
L. TAMELIN
1/3/2012
2:12:22
PM
WBS: 3230
B
PIPING AND INSTRUMENTATION DIAGRAM
TERTIARY CRUSHING
3200-25J-053
HPGR NO. 3
3200-25J-353
LHS
RHS
A,B
V
V V
V V
V
V
3230
05304
ZAHH
3230
05305
ZAHH
P1 P1
3230
05321
VE
3230
05321
VT
3230
05321
VI
3230
05322
LE
3230
05322
LSL
3230
05322
LA
3230
05323
TE
3230
05323
TI
V
V
V V
V
L, P2
T3
GEAR
REDUCER
H, P2
HH, P1
H, P2
HH, P1
ES
VENDOR
DUST
HPGR DUST COLLECTOR,
C2-3230-DC-163
4216 3200-25J-064
HPGR FEED BYPASS
C2-3230-CV-017
4217 3200-25J-073
DUCTING
DUST
HPGR DUST COLLECTOR,
C2-3230-DC-161
4218 3200-25J-064
DUCTING
V
AFD
D
4
F
B
A
3
2
1 5 6 8
E
7
C
REV.
APPROVED
CHK.
DES.
REV. DATE REVISION DESCRIPTION
CLIENT
LEAD ENGINEER
SCALE DRAWING NUMBER
CHECK DESIGN CHECK DRAWING
DESIGNED BY DRAWN BY
APPROVAL DATE
APPROVAL DATE
APPROVED
CHK.
DES.
REV. DATE REVISION DESCRIPTION REFERENCE DRAWING No.
1:100
0
1:200
5m
10m
0
5m
10m
15m
20m
1:500
10m
0
20m
30m
40m
50m
1:1000
0
100m
50m
1:20
0
0.5m
1m
1.5m
2m
0
1:25
0.5m
1m
1.5m
1:33
1/3
2.5m
2m
0
1m
2m
3m
0
1:50
1m
2m
3m
4m
5m
CAD FILE NAME: P:0CAD000SPEM**
MODEL UPDATED:
DWG. FILE UPDATED:
MANUAL CHANGES MADE: YES NO YES NO YES NO
PROJECT MANAGER
ENGINEERING MANAGER
AREA PROJECTENGINEER
REFERENCE DRAWINGS
SAFETY SHARE:
APPROVAL DATE
CONTRACT
NO.
SAFETY SHARE :
BA6CVA1.IGR
NOTICE: THIS DRAWING HAS NOT BEEN PUBLISHED AND IS THE SOLE
PROPERTY OF FLUOR AND IS LENT TO THE BORROWER FOR THEIR
CONFIDENTIAL USE ONLY, AND IN CONSIDERATION OF THE LOAN OF THIS
DRAWING, THE BORROWER PROMISES AND AGREES TO RETURN IT UPON
REQUEST AND AGREES THAT IT WILL NOT BE REPRODUCED, COPIED LENT
OR OTHERWISE DISPOSED OF DIRECTLY OR INDIRECTLY, NOR USED FOR
ANY OTHER PURPOSE OTHER THAN WHICH IT IS FURNISHED.
NONE
Apr 2011
240K-C2-
M
AIR
CANNON
AIR
CANNON
3230
05403 B
SE
3230
TE
3230
05482 H
TI
BRG
REAR
H,P2
HH,P1
3230
05401
HSA
3230
05481
II
3230
05403 B
SI
3230
05406 B
TI
3230
05408 B
XS
3230
05438 B
KL
3230
05408
XA
3230
05403 A
SE
3230
05482 G
TE
3230
05438 A
KL
AIR
CANNON
3230
05481
HS
3230
05419
PDAH
3230
05402
HSS
3230
05407 B
TI
3230
05481
XA
3230
05482 G
TI
3230
05416
LE
3230
05482
II
3230
05482 H
TE
3230
05436 A
LI
3230
05403 B
ST
3230
05416
LT
3230
05406 B
TE
3230
05407 B
TE
3230
05408 A
XS
3230
05415 A
LSH
3230
05418 B
KL
3230
05436
LI
3230
05482
XA FAULT
3230
05415 A
LAH
3230
05436
LE
3230
05436
LT
3230
05402
HSA
3230
05406 A
TE
3230
05403 A
SI
3230
05407 A
TE
3230
05417
LSL
3230
05417
LAL
P1
3230
05416 A
LI
3230
05401
HSS
3230
05418 A
KL
3230
05416
LIC
DUCTING
FAULT
BRG
FRONT
H,P2
HH,P1
ST/SP
H,P2
HH,P1
L, P2
AIR
CANNON
C2-3230-DC-077
C2-3230-ST-164
C2-3230-FA-077
C2-3230-BN-034
C2-3230-FE-054 C2-3230-ST-184
C2-3230-AV-016
C2-3230-AV-015
C2-3230-AV-014
C2-3230-AV-013
SIZE:
MATERIAL:
CAPACITY:
TRIM:
C2-3230-BN-034
HPGR FEED SURGE BIN NO.4
TO ATMOSPHERE
SIZE:
C2-3230-ST-184
HPGR FEEDER NO. 4 HEAD CHUTE
SIZE:
C2-3230-DC-077
HPGR FEED BIN DUST COLLECTOR
SIZE:
C2-3230-ST-164
HPGR FEEDER NO. 4 SKIRT
SIZE:
C2-3230-AV-013
HPGR SURGE BIN AIR CANNON NO. 13
SIZE:
C2-3230-AV-014
HPGR SURGE BIN AIR CANNON NO. 14
SIZE:
C2-3230-AV-015
HPGR SURGE BIN AIR CANNON NO. 15
SIZE:
C2-3230-AV-016
HPGR SURGE BIN AIR CANNON NO. 16
H,P2
HH,P1
L, P2
3230
05403 A
ST
3230
05403
SDI
H,P1
HH, P1
H, P2
HH, P1
H, P2
P1
3230
05411
XA
+
A-D
3230
05406 A
TI
3230
05407 A
TI HH, P2
H, P1
HH, P2
H, P1
RHS
LHS
A,B
TEAR
P1
LHS
A,B
P1
RHS
A,B
P1
TO BE CONTINUED ON
PID 3200-25J-052
CONVEYOR WEIGHT
HPGR FEED CONTROL,
C2-3230-CV-053
2038
3200-25J-055
HPGR FEED
HPGR FEED CONVEYOR NO.4,
C2-3230-CV-053
2034 3200-25J-055
HPGR DISCHARGE
HPGR SPEED CONTROL,
C2-3230-CR-018
2032 3200-25J-055
HPGR FEED
TERIARY CRUSHER SURGE
BIN FEED CONVEYOR NO.1,
2084 3200-25J-052
C2-3240-CV-031
T5
ES
ES
ES
ES
ES
AG
KM
LT
ISSUED FOR CLIENT REVIEW
23-Dec-11
B
RP
ISSUED FOR COMBINED REVIEW
23-Jun-11
A
12/23/2011
K. MUNDY
A. GUNSON
T. OH
L. TAMELIN
1/3/2012
2:07:57
PM
WBS: 3230
B
PIPING AND INSTRUMENTATION DIAGRAM
TERTIARY CRUSHING
3200-25J-054
HPGR NO. 4 FEEDER
RHS
RHS LHS
A,B
SIZE:
MOTOR:
C2-3230-FE-054
HPGR CRUSHER FEEDER NO. 4
SIZE:
MOTOR:
C2-3230-FA-077
HPGR FEED BIN NO. 4 DUST COLLECTOR FAN
AFD
V V
V V
V V
V V V
V
V
V
V V
A,B
V
3230
05404
ZSH
RHS
C,D
C.D
P1
3230
05405
ZAH
V
LHS
C,D
RHS
3230
05404
ZAHH
V
V
3230
05404
ZAH
LHS
A,B
3230
05405
ZAHH
3230
05404
ZSH
P1 P1
3230
05405
ZSHH
LHS
3230
05405
ZSH
P2
LHS
C,D
V
3230
05404
ZSHH
V
P1
P2
A,B
A,B
3230
05405
ZAHH
P2
RHS
A,B
3230
05404
ZSHH
3230
05405
ZAH
RHS
3230
05405
ZSH
V
3230
05404
ZAH
3230
05405
ZSHH
V
P2
3230
05404
ZAHH
3230
05415 B
LSH
3230
05415 B
LAH P1
ES
LHS
RHS
3230
05483
HS
3230
05483
II
C2-3230-FA-078
C2-3230-DC-078
M
ST/SP
3230
05483
XA
TO ATMOSPHERE
FAULT
SIZE:
C2-3230-DC-078
HPGR FEED BIN DUST COLLECTOR
SIZE:
MOTOR:
C2-3230-FA-078
HPGR FEED BIN DUST COLLECTOR FAN
3230-AP-1082-C1A-2"-N
3230-AP-1297-C1A-2"-N
3230
05420
PDAH
VENDOR
VENDOR
ES
DUST
HPGR DUST COLLECTOR,
C2-3230-DC-041
4167 3200-25J-064
PLANT AIR
4236
PLANT AIR
PLANT AIR DISTRIBUTION
HEADER
2998 3200-25J-017
T3
T3
VENDOR
T1
P.O NO.:
VENDOR DWG NO.:
VENDOR:
VENDOR
P.O NO.:
VENDOR DWG NO.:
VENDOR:
VENDOR
3230
05501
HSA
3230
05510
SE
3230
35582 G
TE
3230
05581
XA
3230
05506 B
TI
3230
05515 B
LE
3230
35581 G
TI
BRG
FRONT
H, P2
HH, P1
3230
05503
SDI
3230
35583
XA
3230
35583
HS
J/SP
3230
05505
ZAH
3230
05503 A
ST
3230
05515 A
LE
3230
05531
AI
3230
05502
HSA
3230
35582 H
TI
BRG
FRONT
H, P2
HH, P1
3230
05517
LIT
3230
05507 B
TE
3230
05510
WE
3230
05515 B
LSH
3230
05515 A
LAH
3230
05501
HSS
3230
05503 A
SI
3230
05515 A
LSH
3230
35582
XA
3230
35581 H
TI
3230
35582
HS
J/SP
3230
35581 G
TE
3230
05507 B
TI
3230
35581
HS
J/SP
3230
05505
ZSHH
3230
05510
WIC
H, P2
HH, P2
L, P2
LL, P2
3230
35581
XA
3230
05508 A
XS
LHS
3230
05509
NS
3230
05503 B
ST
3230
05531
AT
3230
05504
ZSH
A,B
3230
35582
II
3230
05510
WIT
3230
35582 G
TI
3230
05509
NA
P1
3230
05505
ZSH
3230
05502
HSS
LHS
A,B
3230
05581
HS
J/SP
3230
05507 A
TI
3230
05503 B
SI
3230
05506 A
TE
A-B
3230
35581 H
TE
BRG
REAR
H, P2
HH, P1
3230
05508 B
XS
RHS
3230
05504
ZAH
3230
05506 B
TE
3230
05517
LIC
3230
05581
II
3230
05508
XA
3230
05506 A
TI
3230
05504
ZSHH
3230
05507 A
TE
3230
35582 H
TE
3230
05517
LE
3230
05515 B
LAH
3230
05503 B
SE
3230
35583
II
3230
35581
II
3230
05503 A
SE
CRUSHER FEEDER
HPGR FEED CONTROL,
C2-3230-FE-054
2038
3200-25J-054
HPGR FEED
HPGR FEEDER NO.4,
C2-3230-FE-054
2034 3200-25J-054
3230-LIC-05416
BIN LEVEL CONTROL,
C2-3230-BN-034
2032
3200-25J-054
TER CRUSHER PRODUCT
CR-018 DISCHARGE
CONVEYOR, C2-3230-CV-017
1831 3200-25J-073
DUST
HPGR DUST COLLECTOR,
C2-3230-DC-162
2033 3200-25J-064
CRUSHER LUBRICATION
AND COOLING SYSTEM
AFD
FAULT
A,B
TEAR
RHS
A-B
AFD
HH, P1
H, P2
P1
FAULT
RHS
P1
LHS
A,B
HH, P1
H, P2
LHS
DUCTING
MOTOR CONTROL SYSTEM
P1
LHS
P2
BRG
REAR
H, P2
HH, P1
H, P1
P1
HH, P1
H, P2
HH, P1
H, P2
RHS
P2
I
M
A
G
E
LHS
FAULT
A,B
P1
RHS
A,B
FAULT
RHS
FC
SIZE:
C2-3230-ST-200
CR-018 DIVERTER CHUTE
C2-3230-ST-218
SIZE:
C2-3230-ST-244
CR-018 DISCHARGE CHUTE
SIZE:
C2-3230-DV-034
CR-018 FEED DIVERTER DRIVE
C2-3230-MD-034
SIZE:
C2-3230-ST-224
CR-018 CRUSHER FEED CHUTE
SIZE:
C2-3230-MD-034
CR-018 METAL DETECTOR
C2-3230-SL-054
C2-3230-CR-018
SIZE:
C2-3230-ST-218
CR-018 FEED CONVEYOR HEAD CHUTE
C2-3230-ST-244
ES
SIZE:
C2-3230-CR-018
HPGR NO.4
AG
KM
LT
ISSUED FOR CLIENT REVIEW
23-Dec-11
B
RP
ISSUED FOR COMBINED REVIEW
23-Jun-11
A
12/23/2011
K. MUNDY
A. GUNSON
T. OH
L. TAMELIN
1/3/2012
2:07:02
PM
WBS: 3230
B
PIPING AND INSTRUMENTATION DIAGRAM
TERTIARY CRUSHING
3200-25J-055
HPGR NO. 4
ES
ES
V
V1
ES
ES
ES
V V
ES
V
SIZE:
C2-3230-SL-054
CR-018 FEED CONVEYOR BELT SCALE
C2-3230-CV-053
C2-3230-DV-034
C2-3230-ST-200
SIZE:
MATERIAL:
MOTOR:
C2-3230-CV-053
CR-018 CRUSHER FEED CONVEYOR
C2-3230-ST-224
D
4
F
B
A
3
2
1 5 6 8
E
7
C
REV.
APPROVED
CHK.
DES.
REV. DATE REVISION DESCRIPTION
CLIENT
LEAD ENGINEER
SCALE DRAWING NUMBER
CHECK DESIGN CHECK DRAWING
DESIGNED BY DRAWN BY
APPROVAL DATE
APPROVAL DATE
APPROVED
CHK.
DES.
REV. DATE REVISION DESCRIPTION REFERENCE DRAWING No.
1:100
0
1:200
5m
10m
0
5m
10m
15m
20m
1:500
10m
0
20m
30m
40m
50m
1:1000
0
100m
50m
1:20
0
0.5m
1m
1.5m
2m
0
1:25
0.5m
1m
1.5m
1:33
1/3
2.5m
2m
0
1m
2m
3m
0
1:50
1m
2m
3m
4m
5m
CAD FILE NAME: P:0CAD000SPEM**
MODEL UPDATED:
DWG. FILE UPDATED:
MANUAL CHANGES MADE: YES NO YES NO YES NO
PROJECT MANAGER
ENGINEERING MANAGER
AREA PROJECTENGINEER
REFERENCE DRAWINGS
SAFETY SHARE:
APPROVAL DATE
CONTRACT
NO.
SAFETY SHARE :
BA6CVA1.IGR
NOTICE: THIS DRAWING HAS NOT BEEN PUBLISHED AND IS THE SOLE
PROPERTY OF FLUOR AND IS LENT TO THE BORROWER FOR THEIR
CONFIDENTIAL USE ONLY, AND IN CONSIDERATION OF THE LOAN OF THIS
DRAWING, THE BORROWER PROMISES AND AGREES TO RETURN IT UPON
REQUEST AND AGREES THAT IT WILL NOT BE REPRODUCED, COPIED LENT
OR OTHERWISE DISPOSED OF DIRECTLY OR INDIRECTLY, NOR USED FOR
ANY OTHER PURPOSE OTHER THAN WHICH IT IS FURNISHED.
NONE
Apr 2011
240K-C2-
LHS
RHS
A,B
V
V V
V V
V
V
V
3230
05504
ZAHH
3230
05505
ZAHH
P1
P1
A,B
GEAR
REDUCER
3230
05521
VE
3230
05521
VT
3230
05521
VI
3230
05522
LE
3230
05522
LSL
3230
05522
LA
3230
05523
TE
3230
05523
TI
V
V
V V
V
L, P2
T3 VENDOR
DUST
HPGR DUST COLLECTOR,
C2-3230-DC-163
4170 3200-25J-064
HPGR FEED BYPASS
C2-3230-CV-017
4214 3200-25J-073
DUST
HPGR DUST COLLECTOR,
C2-3230-DC-161
4184 3200-25J-064
DUCTING
ES
H, P2
HH, P1
H, P2
HH, P1
DUCTING
AFD
D
4
F
B
A
3
2
1 5 6 8
E
7
C
REV.
APPROVED
CHK.
DES.
REV. DATE REVISION DESCRIPTION
CLIENT
LEAD ENGINEER
SCALE DRAWING NUMBER
CHECK DESIGN CHECK DRAWING
DESIGNED BY DRAWN BY
APPROVAL DATE
APPROVAL DATE
APPROVED
CHK.
DES.
REV. DATE REVISION DESCRIPTION REFERENCE DRAWING No.
1:100
0
1:200
5m
10m
0
5m
10m
15m
20m
1:500
10m
0
20m
30m
40m
50m
1:1000
0
100m
50m
1:20
0
0.5m
1m
1.5m
2m
0
1:25
0.5m
1m
1.5m
1:33
1/3
2.5m
2m
0
1m
2m
3m
0
1:50
1m
2m
3m
4m
5m
CAD FILE NAME: P:0CAD000SPEM**
MODEL UPDATED:
DWG. FILE UPDATED:
MANUAL CHANGES MADE: YES NO YES NO YES NO
PROJECT MANAGER
ENGINEERING MANAGER
AREA PROJECTENGINEER
REFERENCE DRAWINGS
SAFETY SHARE:
APPROVAL DATE
CONTRACT
NO.
SAFETY SHARE :
BA6CVA1.IGR
NOTICE: THIS DRAWING HAS NOT BEEN PUBLISHED AND IS THE SOLE
PROPERTY OF FLUOR AND IS LENT TO THE BORROWER FOR THEIR
CONFIDENTIAL USE ONLY, AND IN CONSIDERATION OF THE LOAN OF THIS
DRAWING, THE BORROWER PROMISES AND AGREES TO RETURN IT UPON
REQUEST AND AGREES THAT IT WILL NOT BE REPRODUCED, COPIED LENT
OR OTHERWISE DISPOSED OF DIRECTLY OR INDIRECTLY, NOR USED FOR
ANY OTHER PURPOSE OTHER THAN WHICH IT IS FURNISHED.
NONE
Apr 2011
240K-C2-
3230
05608 A
XS
3230
05607 B
TE
3230
05606 B
TE
LHS
C2-3230-AV-017
C2-3230-AV-018
3230
05616
LT
C2-3230-AV-019
3230
05603B
ST
C2-3230-AV-020
3230
05636
LI
C2-3230-ST-191
C2-3230-FE-061
A-D
3230
05682
II
C2-3230-BN-035
RHS
3230
05611
XA
+
C2-3230-FA-181
HH, P2
H, P1
HH, P2
H, P1
3230
05616
LE
P1
3230
05682 G
TI
HH, P1
H, P2
HH, P1
H, P2
3230
05681
XA
C2-3230-ST-171
3230
05607 B
TI
A,B
3230
05602
HSS
3230
05619
PDAH
3230
05681
HS
C2-3230-DC-181
AIR
CANNON
PID 3200-25J-058
TO BE CONTINUED ON
H,P2
HH,P1
L, P2
AIR
CANNON
3230
05638 A
KL
ST/SP
M
BRG
FRONT
H,P2
HH,P1
3230
05682 G
TE
P1
RHS
A,B
3230
05603 A
SE
FAULT
3230
05607 A
TI
P1
LHS
A,B
DUCTING
3230
05616
LIC
TEAR
3230
05608
XA
P1
3230
05618 A
KL
3230
05601
HSS
3230
05606 A
TI
3230
05638 B
KL
3230
05608 B
XS
3230
05616 A
LI
P1
3230
05617
LAL
3230
05617
LSL
3230
05606 B
TI
3230
05607 A
TE
3230
05603B
SI
3230
05603 A
SI
3230
05681
II
3230
05606 A
TE
TO ATMOSPHERE
3230
05602
HSA
3230
05636 A
LT
3230
05601
HSA
3230
05636
LE
3230
05615 A
LAH
H,P1
BRG
REAR
H,P2
HH,P1
3230
05603
SDI
3230
05682 H
TI
3230
05682 H
TE
FAULT
3230
05603B
SE
3230
05682
XA
3230
05636
LI
3230
05603 A
ST
AIR
CANNON
3230
05618 B
KL
H,P2
HH,P1
L, P2
AIR
CANNON
3230
05615 A
LSH
HPGR DISCHARGE
HPGR SPEED CONTROL,
C2-3230-CR-025
2049 3200-25J-057
HPGR FEED
HPGR FEED CONVEYOR NO.5,
C2-3230-CV-054
2052 3200-25J-057
CONVEYOR WEIGHT
HPGR FEED CONTROL,
C2-3230-CV-054
2058
3200-25J-057
DUST
HPGR DUST COLLECTOR,
C2-3230-DC-079
2108 3200-25J-064
HPGR FEED
TERTIARY CRUSHER SURGE
BIN FEED CONVEYOR NO.2,
1904 3200-25J-026
C2-3240-CV-041
HPGR FEED
HPGR FEED SURGE BIN NO.6,
C2-3230-BN-036
2120 3200-25J-058
T5
ES
SIZE:
C2-3230-AV-018
HPGR SURGE BIN AIR CANNON NO. 18
SIZE:
C2-3230-ST-171
HPGR FEEDER NO.5 SKIRT
3230-AP-1084-C1A-2"-N
ES
SIZE:
C2-3230-AV-017
HPGR SURGE BIN AIR CANNON NO. 17
SIZE:
C2-3230-ST-191
HPGR FEEDER NO.5 HEAD CHUTE
SIZE:
C2-3230-AV-019
HPGR SURGE BIN AIR CANNON NO. 19
ES
SIZE:
C2-3230-DC-181
HPGR FEED BIN DUST COLLECTOR
ES
SIZE:
C2-3230-AV-020
HPGR SURGE BIN AIR CANNON NO. 20
ES
SIZE:
MATERIAL:
CAPACITY:
TRIM:
C2-3230-BN-035
HPGR SURGE BIN NO.5
AG
KM
LT
ISSUED FOR CLIENT REVIEW
23-Dec-11
B
RP
ISSUED FOR COMBINED REVIEW
23-Jun-11
A
12/23/2011
K. MUNDY
A. GUNSON
T. OH
L. TAMELIN
1/3/2012
2:05:50
PM
WBS: 3230
B
PIPING AND INSTRUMENTATION DIAGRAM
TERTIARY CRUSHING
3200-25J-056
HPGR NO. 5 FEEDER
RHS
LHS
RHS
A,B
SIZE:
MOTOR:
C2-3230-FE-061
HPGR CRUSHER FEEDER NO.5
SIZE:
MOTOR:
C2-3230-FA-181
HPGR FEED BIN DUST COLLECTOR FAN
AFD
V V
V V
V
V
V
V
V
V
V
V V V
P1
3230
05615 B
LAH
3230
05615 B
LSH
3230
05605
ZAHH
P2
C.D
V
3230
05605
ZSHH
P2
V
3230
05604
ZAHH
V
3230
05605
ZAHH
3230
05604
ZAHH
LHS
V
3230
05604
ZSH
3230
05604
ZSH
P2
RHS
C,D
RHS
A,B
RHS
P2
3230
05604
ZSHH
3230
05604
ZSHH
3230
05605
ZSH
LHS
A,B
LHS
C,D
A,B
P1
3230
05605
ZAH
3230
05605
ZSHH
V
3230
05604
ZAH
P1
3230
05605
ZAH
A,B
V
V
LHS
3230
05605
ZSH
P1
V
RHS
3230
05604
ZAH
P1
C,D
ES
LHS
RHS
A,B
M
TO ATMOSPHERE
C2-3230-DC-182
FAULT
ST/SP
3230
05683
II
3230
05683
HS
3230
05683
XA
C2-3230-FA-182
SIZE:
C2-3230-DC-182
HPGR FEED BIN DUST COLLECTOR
SIZE:
MOTOR:
C2-3230-FA-182
HPGR FEED BIN DUST COLLECTOR FAN
3230-AP-1298-C1A-2"-N
PLANT AIR
4240
ES
VENDOR VENDOR
3230
05620
PDAH
PLANT AIR
PLANT AIR DISTRIBUTION
HEADER
2999 3200-25J-017
D
4
F
B
A
3
2
1 5 6 8
E
7
C
REV.
APPROVED
CHK.
DES.
REV. DATE REVISION DESCRIPTION
CLIENT
LEAD ENGINEER
SCALE DRAWING NUMBER
CHECK DESIGN CHECK DRAWING
DESIGNED BY DRAWN BY
APPROVAL DATE
APPROVAL DATE
APPROVED
CHK.
DES.
REV. DATE REVISION DESCRIPTION REFERENCE DRAWING No.
1:100
0
1:200
5m
10m
0
5m
10m
15m
20m
1:500
10m
0
20m
30m
40m
50m
1:1000
0
100m
50m
1:20
0
0.5m
1m
1.5m
2m
0
1:25
0.5m
1m
1.5m
1:33
1/3
2.5m
2m
0
1m
2m
3m
0
1:50
1m
2m
3m
4m
5m
CAD FILE NAME: P:0CAD000SPEM**
MODEL UPDATED:
DWG. FILE UPDATED:
MANUAL CHANGES MADE: YES NO YES NO YES NO
PROJECT MANAGER
ENGINEERING MANAGER
AREA PROJECTENGINEER
REFERENCE DRAWINGS
SAFETY SHARE:
APPROVAL DATE
CONTRACT
NO.
SAFETY SHARE :
BA6CVA1.IGR
NOTICE: THIS DRAWING HAS NOT BEEN PUBLISHED AND IS THE SOLE
PROPERTY OF FLUOR AND IS LENT TO THE BORROWER FOR THEIR
CONFIDENTIAL USE ONLY, AND IN CONSIDERATION OF THE LOAN OF THIS
DRAWING, THE BORROWER PROMISES AND AGREES TO RETURN IT UPON
REQUEST AND AGREES THAT IT WILL NOT BE REPRODUCED, COPIED LENT
OR OTHERWISE DISPOSED OF DIRECTLY OR INDIRECTLY, NOR USED FOR
ANY OTHER PURPOSE OTHER THAN WHICH IT IS FURNISHED.
NONE
Apr 2011
240K-C2-
3230
05703 A
ST
3230
05703 A
SE
3230
05707 B
TE
HH, P1
H, P2
3230
05709
NA
P1
3230
05709
NS
3230
35781 H
TI
3230
35781 G
TE
3230
35781 G
TI
BRG
FRONT
H, P2
HH, P1
3230
35781 H
TE
BRG
REAR
H, P2
HH, P1
3230
35782 H
TE
3230
35782 G
TE
3230
35782 G
TI
3230
35782 H
TI
BRG
FRONT
H, P2
HH, P1
3230
05716
LI
3230
05716
LIT
3230
05716
LE
3230
05782
II
3230
05782
HS
J/SP
3230
05782
XA
H, P2
L, P2
LL, P1
3230
05732
FS
3230
05732
FA
3230
05732
XL
3230
05715 B
LAH
3230
05706 B
TI HH, P1
H, P2
3230
05706 B
TE
3230
05704
ZAH RHS
P2
3230
05703 B
ST
3230
05702
HSA
3230
05715 B
LSH
3230
05703 B
SE
3230
05701
HSA
3230
05701
HSS
3230
05705
ZSHH
3230
05702
HSS
LHS
A,B
3230
05705
ZSH
3230
05703
SDI
3230
05708 B
XS
3230
05704
ZSHH
3230
05708 A
XS
3230
05704
ZSH
A,B
3230
05703 B
SI
3230
05717
LIC
3230
05707 A
TI
3230
05703 A
SI
3230
05707 A
TE
HH, P1
H, P2
3230
05707 B
TI
3230
05710
WIC
H, P2
HH, P2
L, P2
LL, P2
3230
05706 A
TI HH, P1
H, P2
3230
05706 A
TE
A-B
3230
05710
WIT
3230
05717
LE
3230
05705
ZAH 3230
05710
WE
3230
05731
AI
3230
05731
AT
A,B
A,B
LHS
P2
H, P1
P1
P1
RHS
A,B
I
M
A
G
E
BRG
REAR
H, P2
HH, P1
RHS LHS
LHS
RHS
RHS
A-B
P1
LHS
A,B
C2-3230-CV-054
C2-3230-ST-251
C2-3230-CR-025
C2-3230-ST-225
C2-3230-SL-061
C2-3230-ST-231
C2-3230-MD-035 C2-3230-PP-042
3230-SL1014-C1B-6"-N
C2-3230-ST-211
C2-3230-DV-035
3230
05732
XA
+
C2-3230-ES-032
VENDOR
TEAR
3230
05717
LIT
DUCTING
VENDOR
VENDOR
MOTOR CONTROL SYSTEM
CRUSHER LUBRICATION
AND COOLING SYSTEM
3230
35783
II
3230
35783
XA
3230
35783
HS
FAULT
J/SP
SIZE:
MATERIAL:
MOTOR:
C2-3230-PP-042
HPGR AREA SUMP PUMP SOUTH
SIZE:
MATERIAL:
MOTOR:
C2-3230-CV-054
CR-025 FEED CONVEYOR
SIZE:
C2-3230-DV-035
CR-025 FEED DIVERTER
SIZE:
C2-3230-ST-231
CR-025 FEED CHUTE
SIZE:
C2-3230-ST-251
CR-025 DISCHARGE CHUTE
SIZE:
C2-3230-SL-061
CR-025 FEED CONVEYOR BELT SCALE
SIZE:
C2-3230-MD-035
CR-025 FEED METAL DETECTOR
SIZE:
C2-3230-ST-225
FEED CONVEYOR HEAD CHUTE
SIZE:
C2-3230-ST-211
CR-025 DIVERTER CHUTE
SIZE:
C2-3230-CR-025
HPGR NO.5
SIZE:
C2-3230-ES-032
CR-025 EYEWASH STATION
P.O NO.:
VENDOR DWG NO.:
VENDOR:
P.O NO.:
VENDOR DWG NO.:
VENDOR:
3230
05710
SE
3230
35782
II
3230
35782
XA
3230
35782
HS
FAULT
J/SP
AFD
3230
35781
II
3230
35781
XA
3230
35781
HS
FAULT
J/SP
AFD
FC
V1
3230
05781
II
3230
05781
XA
3230
05781
HS
FAULT
J/SP
3230
05708
XA
P1
RHS
LHS
3230
05715 B
LE
3230
05715 A
LAH
3230
05715 A
LSH
P1
3230
05715 A
LE
TER CRUSHER PRODUCT
CR-025 DISCHARGE
CONVEYOR, C2-3230-CV-027
1963 3200-25J-074
3230-LIC-05616
BIN LEVEL CONTROL,
C2-3230-BN-035
2049
3200-25J-056
TER CRUSHER SUMP
COOLING WATER RETURN
PUMPBOX, C2-3230-BX-030
2050 3200-25J-079
DUST
HPGR DUST COLLECTOR,
C2-3230-DC-192
2051 3200-25J-064
HPGR FEED
HPGR CRUSHER FEEDER
NO.5, C2-320-FE-061
2052 3200-25J-056
CRUSHER FEEDER
HPGR FEED CONTROL,
C2-3230-FE-061
2058
3200-25J-056
T3
T1
T8
T3
ES
V
ES
ES
V
ES
V
ES
V
ES
ES
ES
DOMESTIC WATER
2784 5400-25J-022
AG
KM
LT
ISSUED FOR CLIENT REVIEW
23-Dec-11
B
RP
ISSUED FOR COMBINED REVIEW
23-Jun-11
A
12/23/2011
K. MUNDY
A. GUNSON
T. OH
L. TAMELIN
1/3/2012
1:37:04
PM
WBS: 3230
B
PIPING AND INSTRUMENTATION DIAGRAM
TERTIARY CRUSHING
3200-25J-057
HPGR NO. 5
RHS LHS
A,B
FAULT
V V
V V
V V
V
V
V V
V
3230
05704
ZAHH
3230
05705
ZAHH P1
P1
V
V
3230-WD-1015-G1A-1"-N
3230
05721
VE
3230
05721
VT
3230
05721
VI
3230
05722
LE
3230
05722
LSL
3230
05722
LA
3230
05723
TE
3230
05723
TI
V
V
V V
V
L, P2
T3
GEAR
REDUCER
H, P2
HH, P1
H, P2
HH, P1
ES
V
VENDOR
DUST
HPGR DUST COLLECTOR,
C2-3230-DC-193
4187 3200-25J-064
DUST
HPGR DUST COLLECTOR,
C2-3230-DC-191
4194 3200-25J-064
HPGR FEED BYPASS
C2-3230-CV-027
4228 3200-25J-074
DUCTING
DUCTING
AFD
T5
A, B
M
AIR
CANNON
AIR
CANNON
3230
05838 B
KL
3230
05818 B
KL
3230
05882 G
TE
3230
05815
LSH
3230
05806 A
TI HH, P2
H, P1
3230
05808 B
XS
3230
05882 H
TI
BRG
REAR
H,P2
HH,P1
3230
05802
HSA
3230
05816
LT
3230
05836 A
LI
3230
05816
LE
3230
05881
II
3230
05803 A
SE
3230
05807 A
TE
3230
05807 A
TI
3230
05807 B
TI
3230
05806 B
TI
3230
05807 B
TE
3230
05801
HSA
3230
05803 A
ST
3230
05806 B
TE
3230
05803 B
SE
3230
05803 B
SI
3230
05806 A
TE
3230
05836
LE
3230
05836
LT
3230
05802
HSS
3230
05803 A
SI
3230
05819
PDAH
3230
05803
SDI
3230
05816
LIC
3230
05803 B
ST
3230
05838 A
KL
AIR
CANNON
3230
05808 A
XS
TEAR
3230
05817
LAL
P1
3230
05808
XA
3230
05882 H
TE
3230
05881
XA
3230
05816 A
LI
3230
05836
LI
3230
05801
HSS
3230
05882
II
3230
05881
HS
3230
05882 G
TI
3230
05882
XA FAULT
3230
05815
LAH
3230
05817
LSL
3230
05818 A
KL
CONVEYOR WEIGHT
HPGR FEED CONTROL,
C2-3230-CV-055
2070
3200-25J-059
HPGR FEED
HPGR FEED CONVEYOR NO.6,
C2-3230-CV-055
2068 3200-25J-059
HPGR DISCHARGE
HPGR SPEED CONTROL,
C2-3230-CR-026
2066 3200-25J-059
DUST
HPGR DUST COLLECTOR,
C2-3230-DC-079
2117 3200-25J-064
HPGR FEED
HPGR FEED SURGE BIN NO.7,
C2-3230-BN-037
2123 3200-25J-060
HPGR FEED
TERTIARY CRUSHER SURGE
BIN FEED CONVEYOR NO.2,
2120 3200-25J-056
P1
LHS
A,B
BRG
FRONT
H,P2
HH,P1
H,P2
HH,P1
L, P2
P1
P1
RHS
A,B
H,P1
FAULT
HH, P1
H, P2
DUCTING
RHS
AIR
CANNON
PID 3200-25J-060
HH, P2
H, P1
P1
H,P2
HH,P1
L, P2
LHS
ST/SP
HH, P1
H, P2
TO BE CONTINUED ON
PID 3200-25J-056
C2-3240-CV-041
TO BE CONTINUED ON
A-D
SIZE:
C2-3230-AV-021
HPGR SURGE BIN AIR CANNON NO. 21
C2-3230-AV-023
SIZE:
C2-3230-ST-172
HPGR FEEDER NO.6 SKIRT
C2-3230-BN-036
SIZE:
C2-3230-DC-183
HPGR FEED BIN DUST COLLECTOR
SIZE:
MATERIAL:
CAPACITY:
TRIM:
C2-3230-BN-036
HPGR FEED SURGE BIN NO.6
3230-AP-1087-C1A-2"-N
C2-3230-ST-192
C2-3230-AV-021
C2-3230-DC-183
TO ATMOSPHERE
C2-3230-AV-022
C2-3230-ST-172
ES
ES
ES
ES
ES
AG
KM
LT
ISSUED FOR CLIENT REVIEW
23-Dec-11
B
RP
ISSUED FOR COMBINED REVIEW
23-Jun-11
A
12/23/2011
K. MUNDY
A. GUNSON
T. OH
L. TAMELIN
1/3/2012
2:34:56
PM
WBS: 3230
B
PIPING AND INSTRUMENTATION DIAGRAM
TERTIARY CRUSHING
3200-25J-058
HPGR NO. 6 FEEDER
SIZE:
C2-3230-AV-022
HPGRSURGE BIN AIR CANNON NO. 22
SIZE:
C2-3230-ST-192
HPGR FEEDER NO.6 HEAD CHUTE
SIZE:
C2-3230-AV-024
HPGR SURGE BIN AIR CANNON NO. 24
C2-3230-FA-183
SIZE:
C2-3230-AV-023
HPGR SURGE BIN AIR CANNON NO. 23
3230
05811
XA
+
C2-3230-AV-024
C2-3230-FE-062
D
4
F
B
A
3
2
1 5 6 8
E
7
C
REV.
APPROVED
CHK.
DES.
REV. DATE REVISION DESCRIPTION
CLIENT
LEAD ENGINEER
SCALE DRAWING NUMBER
CHECK DESIGN CHECK DRAWING
DESIGNED BY DRAWN BY
APPROVAL DATE
APPROVAL DATE
APPROVED
CHK.
DES.
REV. DATE REVISION DESCRIPTION REFERENCE DRAWING No.
1:100
0
1:200
5m
10m
0
5m
10m
15m
20m
1:500
10m
0
20m
30m
40m
50m
1:1000
0
100m
50m
1:20
0
0.5m
1m
1.5m
2m
0
1:25
0.5m
1m
1.5m
1:33
1/3
2.5m
2m
0
1m
2m
3m
0
1:50
1m
2m
3m
4m
5m
CAD FILE NAME: P:0CAD000SPEM**
MODEL UPDATED:
DWG. FILE UPDATED:
MANUAL CHANGES MADE: YES NO YES NO YES NO
PROJECT MANAGER
ENGINEERING MANAGER
AREA PROJECTENGINEER
REFERENCE DRAWINGS
SAFETY SHARE:
APPROVAL DATE
CONTRACT
NO.
SAFETY SHARE :
BA6CVA1.IGR
NOTICE: THIS DRAWING HAS NOT BEEN PUBLISHED AND IS THE SOLE
PROPERTY OF FLUOR AND IS LENT TO THE BORROWER FOR THEIR
CONFIDENTIAL USE ONLY, AND IN CONSIDERATION OF THE LOAN OF THIS
DRAWING, THE BORROWER PROMISES AND AGREES TO RETURN IT UPON
REQUEST AND AGREES THAT IT WILL NOT BE REPRODUCED, COPIED LENT
OR OTHERWISE DISPOSED OF DIRECTLY OR INDIRECTLY, NOR USED FOR
ANY OTHER PURPOSE OTHER THAN WHICH IT IS FURNISHED.
NONE
Apr 2011
240K-C2-
RHS LHS
A,B
RHS
LHS
SIZE:
MOTOR:
C2-3230-FE-062
HPGR CRUSHER FEEDER NO.6
SIZE:
MOTOR:
C2-3230-FA-183
HPGR FEED BIN DUST COLLECTOR FAN
AFD
V V
V V
V
V
V
V
V
V
V
V V V
3230
05815 B
LSH
3230
05815 B
LAH P1
ES
LHS
RHS
3230
05805
ZSHH
V A,B
V
P2
V
V
V
A,B
3230
05805
ZSH
RHS
C,D
RHS
V
P1
3230
05804
ZAHH
P1
P2
3230
05804
ZSH
3230
05805
ZSH
P1
3230
05804
ZAH
LHS
A,B
RHS
A,B
P1
3230
05804
ZSH
RHS
P2
3230
05805
ZSHH
3230
05804
ZAH
3230
05805
ZAHH
V
3230
05805
ZAHH
LHS
LHS
P2
C,D
C.D
V
3230
05804
ZSHH
3230
05805
ZAH
3230
05804
ZSHH
3230
05804
ZAHH
3230
05805
ZAH
LHS
C,D
A,B
FAULT
3230
05883
II
3230
05883
XA
TO ATMOSPHERE
3230
05883
HS
C2-3230-DC-184
M
ST/SP
C2-3230-FA-184
SIZE:
C2-3230-DC-184
HPGR FEED BIN DUST COLLECTOR
SIZE: 13600 Nm3/h
MOTOR: 15.00 kW
C2-3230-FA-184
HPGR FEED BIN DUST COLLECTOR FAN
3230-AP-1299-C1A-2"-N
3230
05820
PDAH
VENDOR VENDOR
PLANT AIR
4243
ES
PLANT AIR
PLANT AIR DISTRIBUTION
HEADER
3000 3200-25J-017
T3
T3
VENDOR
T1
P.O NO.:
VENDOR DWG NO.:
VENDOR:
VENDOR
P.O NO.:
VENDOR DWG NO.:
VENDOR:
VENDOR
3230
35982
HS
J/SP
3230
05906 A
TE
A-B
3230
35983
II
3230
05903 A
SI
3230
35982 G
TE
3230
05981
XA
3230
05904
ZAH
3230
05908 B
XS
RHS
3230
35983
XA
3230
05902
HSA
3230
35982
II
3230
05902
HSS
RHS
A,B
3230
05904
ZSHH
3230
05981
II
3230
05909
NA
P1
3230
05905
ZSH
3230
05909
NS
3230
05915 A
LAH
3230
05917
LIC
3230
05910
WE
3230
35982 H
TI
BRG
FRONT
H, P2
HH, P1
3230
05931
AI
3230
05906 A
TI
3230
05903 B
ST
3230
05917
LE
3230
05907 A
TI
3230
35981
XA
3230
35981
II
3230
05915 B
LE
3230
35981 H
TI
3230
05901
HSS
3230
05903 A
ST
3230
05981
HS
J/SP
3230
05903 A
SE
3230
05903 B
SE
3230
35981 G
TE 3230
35981
HS
J/SP
3230
05905
ZSHH
3230
05931
AT
3230
05910
SE
3230
35983
HS
J/SP
3230
35981 G
TI
BRG
FRONT
H, P2
HH, P1
3230
05915 B
LSH
3230
05908
XA
3230
35982 G
TI
3230
05917
LIT
3230
05906 B
TE
3230
35981 H
TE
BRG
REAR
H, P2
HH, P1
3230
05915 B
LAH
3230
05907 B
TI
3230
05907 A
TE
3230
05901
HSA
3230
05905
ZAH
3230
05903 B
SI
3230
35982 H
TE
3230
05904
ZSH
A,B
3230
05903
SDI
3230
05906 B
TI
3230
05907 B
TE
3230
05910
WIC
H, P2
HH, P2
L, P2
LL, P2
3230
05910
WIT
3230
05908 A
XS
LHS
3230
35982
XA
3230
05915 A
LSH
3230
05915 A
LE
3230-LIC-05816
BIN LEVEL CONTROL,
C2-3230-BN-036
2066
3200-25J-058
HPGR FEED
HPGR CRUSHER FEEDER
NO.6, C2-3230-FE-062
2068 3200-25J-058
TER CRUSHER PRODUCT
CR-026 DISCHARGE
CONVEYOR , C2-3230-CV-027
1964 3200-25J-074
CRUSHER FEEDER
HPGR FEED CONTROL,
C2-3230-FE-062
2070
3200-25J-058
DUST
HPGR DUST COLLECTOR,
C2-3230-DC-192
2067 3200-25J-064
P1
FAULT
FAULT
TEAR
CRUSHER LUBRICATION
AND COOLING SYSTEM MOTOR CONTROL SYSTEM
AFD
LHS
P2
BRG
REAR
H, P2
HH, P1
HH, P1
H, P2
FAULT
P1
P1
RHS
A,B
HH, P1
H, P2
I
M
A
G
E
DUCTING
FAULT
LHS
RHS
P2
H, P1
LHS
A,B
A,B
HH, P1
H, P2
P1
LHS
A,B
RHS
P1
HH, P1
H, P2
AFD
RHS
LHS
A-B
ES
ES
ES
ES
AG
KM
LT
ISSUED FOR CLIENT REVIEW
23-Dec-11
B
RP
ISSUED FOR COMBINED REVIEW
23-Jun-11
A
12/23/2011
K. MUNDY
A. GUNSON
T. OH
L. TAMELIN
1/3/2012
10:22:37
AM
WBS: 3230
B
PIPING AND INSTRUMENTATION DIAGRAM
TERTIARY CRUSHING
3200-25J-059
HPGR NO. 6
C2-3230-CR-026
SIZE:
C2-3230-MD-036
CR-026 FEED METAL DETECTOR
C2-3230-ST-226
SIZE:
MATERIAL:
MOTOR:
C2-3230-CV-055
CR-026 FEED CONVEYOR
V
V
V1
FC
ES
ES
ES
V
C2-3230-ST-252
C2-3230-MD-036
SIZE:
C2-3230-ST-252
CR-026 DISCHARGE CHUTE
SIZE:
C2-3230-CR-026
HPGR NO.6
C2-3230-ST-212
C2-3230-CV-055
SIZE:
C2-3230-ST-226
CR-026 FEED CONVEYOR HEAD CHUTE
C2-3230-SL-062
SIZE:
C2-3230-ST-232
CR-026 FEED CHUTE
C2-3230-DV-036
C2-3230-ST-232
SIZE:
C2-3230-ST-212
CR-026 DIVERTER CHUTE
SIZE:
C2-3230-DV-036
CR-026 FEED DIVERTER DRIVE
SIZE:
C2-3230-SL-062
CR-026 FEED CONVEYOR BELT SCALE
D
4
F
B
A
3
2
1 5 6 8
E
7
C
REV.
APPROVED
CHK.
DES.
REV. DATE REVISION DESCRIPTION
CLIENT
LEAD ENGINEER
SCALE DRAWING NUMBER
CHECK DESIGN CHECK DRAWING
DESIGNED BY DRAWN BY
APPROVAL DATE
APPROVAL DATE
APPROVED
CHK.
DES.
REV. DATE REVISION DESCRIPTION REFERENCE DRAWING No.
1:100
0
1:200
5m
10m
0
5m
10m
15m
20m
1:500
10m
0
20m
30m
40m
50m
1:1000
0
100m
50m
1:20
0
0.5m
1m
1.5m
2m
0
1:25
0.5m
1m
1.5m
1:33
1/3
2.5m
2m
0
1m
2m
3m
0
1:50
1m
2m
3m
4m
5m
CAD FILE NAME: P:0CAD000SPEM**
MODEL UPDATED:
DWG. FILE UPDATED:
MANUAL CHANGES MADE: YES NO YES NO YES NO
PROJECT MANAGER
ENGINEERING MANAGER
AREA PROJECTENGINEER
REFERENCE DRAWINGS
SAFETY SHARE:
APPROVAL DATE
CONTRACT
NO.
SAFETY SHARE :
BA6CVA1.IGR
NOTICE: THIS DRAWING HAS NOT BEEN PUBLISHED AND IS THE SOLE
PROPERTY OF FLUOR AND IS LENT TO THE BORROWER FOR THEIR
CONFIDENTIAL USE ONLY, AND IN CONSIDERATION OF THE LOAN OF THIS
DRAWING, THE BORROWER PROMISES AND AGREES TO RETURN IT UPON
REQUEST AND AGREES THAT IT WILL NOT BE REPRODUCED, COPIED LENT
OR OTHERWISE DISPOSED OF DIRECTLY OR INDIRECTLY, NOR USED FOR
ANY OTHER PURPOSE OTHER THAN WHICH IT IS FURNISHED.
NONE
Apr 2011
240K-C2-
RHS LHS
A,B
V V
V V
V V
V
V
3230
05904
ZAHH
3230
05905
ZAHH
P1 P1
3230
05921
VE
3230
05921
VT
3230
05921
VI
3230
05922
LE
3230
05922
LSL
3230
05922
LA
3230
05923
TE
3230
05923
TI
V
V
V V
V
L, P2
T3
GEAR
REDUCER
H, P2
HH, P1
H, P2
HH, P1
ES
V
VENDOR
DUST
HPGR DUST COLLECTOR,
C2-3230-DC-193
4190 3200-25J-064
HPGR FEED BYPASS
C2-3230-CV-027
4229 3200-25J-074
DUST
HPGR DUST COLLECTOR,
C2-3230-DC-191
4197 3200-25J-064
DUCTING
DUCTING
AFD
M
T5
LHS
A, B
AIR
CANNON
AIR
CANNON
3230
06006 A
TE
3230
06003 A
ST
3230
06003 A
SI
3230
06081
HS
3230
06007 B
TI
3230
06008 B
TE
3230
06015 A
LSH
3230
06003 B
SI
3230
06082G
TI
3230
06007 A
TE
3230
06038 A
KL
AIR
CANNON
3230
06008 B
TI
3230
06003
SDI
3230
06018 B
KL
3230
06007 B
TE
3230
06019
PDAH
3230
06001
HSA
3230
06003 B
SE
3230
06016
LT
3230
06082 H
TI
BRG
REAR
H,P2
HH,P1
3230
06036
LI
3230
06008 B
XS
3230
06002
HSS
A,B
3230
06001
HSS
3230
06002
HSA
3230
06038 B
KL
3230
06003 A
SE
3230
06081
II
3230
06007 A
TI
3230
06015 A
LAH
3230
06016
LIC
3230
06082
II
3230
06036
LE
3230
06006 A
TI HH, P2
H, P1
3230
06036
LT
3230
06036 A
LI
3230
06082
XA FAULT
3230
06008
XA
3230
06081
XA
3230
06016 A
LI
3230
06017
LSL
3230
06082 H
TE
3230
06003 B
ST
3230
06016
LE
3230
06018 A
KL
3230
06008 A
XS
TEAR
3230
06017
LAL
P1
3230
06082G
TE
CONVEYOR WEIGHT
HPGR FEED CONTROL,
C2-3230-CV-056
2085
3200-25J-061
HPGR FEED
TERTIARY CRUSHER SURGE
BIN FEED CONVEYOR NO.2,
2123 3200-25J-058
DUST
HPGR DUST COLLECTOR,
C2-3230-DC-079
2124 3200-25J-064
HPGR DISCHARGE
HPGR SPEED CONTROL,
C2-3230-CR-027
2077 3200-25J-061
HPGR FEED
HPGR FEED CONVEYOR NO.7,
C2-3230-CV-056
2079 3200-25J-061
HPGR FEED
HPGR FEED SURGE BIN NO.8,
C2-3230-BN-038
2132 3200-25J-062
RHS
A,B RHS LHS
FAULT
HH, P1
H, P2
ST/SP
LHS
RHS
TO BE CONTINUED ON
PID 3200-25J-050
C2-3240-CV-041
AIR
CANNON
H,P1
P1
RHS
A,B
A-D
HH, P1
H, P2
DUCTING
TO BE CONTINUED ON
BRG
FRONT
H,P2
HH,P1
H,P2
HH,P1
L, P2
PID 3200-25J-062
P1
HH, P2
H, P1
P1
P1
LHS
A,B
H,P2
HH,P1
L, P2
C2-3230-FE-063
SIZE:
C2-3230-AV-025
HPGR SURGE BIN AIR CANNON NO. 25
SIZE:
MATERIAL:
CAPACITY:
TRIM:
C2-3230-BN-037
HPGR FEED SURGE BIN NO.7
SIZE:
C2-3230-AV-026
HPGRSURGE BIN AIR CANNON NO. 26
C2-3230-AV-027
C2-3230-ST-193
SIZE:
MOTOR:
C2-3230-FE-063
HPGR CRUSHER FEEDER NO.7
SIZE:
MOTOR:
C2-3230-FA-185
HPGR FEED BIN DUST COLLECTOR FAN
C2-3230-FA-185
C2-3230-DC-185
SIZE:
C2-3230-DC-185
HPGR FEED BIN DUST COLLECTOR
AG
KM
LT
ISSUED FOR CLIENT REVIEW
23-Dec-11
B
RP
ISSUED FOR COMBINED REVIEW
23-Jun-11
A
12/23/2011
K. MUNDY
A. GUNSON
T. OH
L. TAMELIN
1/3/2012
10:26:53
AM
WBS: 3230
B
PIPING AND INSTRUMENTATION DIAGRAM
TERTIARY CRUSHING
3200-25J-060
HPGR NO. 7 FEEDER
TO ATMOSPHERE
C2-3230-BN-037
C2-3230-AV-028
SIZE:
C2-3230-AV-027
HPGR SURGE BIN AIR CANNON NO. 27
C2-3230-AV-026
C2-3230-ST-173
ES
ES
ES
ES
ES
SIZE:
C2-3230-AV-028
HPGR SURGE BIN AIR CANNON NO. 28
C2-3230-AV-025
SIZE:
C2-3230-ST-193
HPGR FEEDER NO.7 HEAD CHUTE
SIZE:
C2-3230-ST-173
HPGR FEEDER NO.7 SKIRT
3230-AP-1086-C1A-2"-N
3230
06011
XA
+
D
4
F
B
A
3
2
1 5 6 8
E
7
C
REV.
APPROVED
CHK.
DES.
REV. DATE REVISION DESCRIPTION
CLIENT
LEAD ENGINEER
SCALE DRAWING NUMBER
CHECK DESIGN CHECK DRAWING
DESIGNED BY DRAWN BY
APPROVAL DATE
APPROVAL DATE
APPROVED
CHK.
DES.
REV. DATE REVISION DESCRIPTION REFERENCE DRAWING No.
1:100
0
1:200
5m
10m
0
5m
10m
15m
20m
1:500
10m
0
20m
30m
40m
50m
1:1000
0
100m
50m
1:20
0
0.5m
1m
1.5m
2m
0
1:25
0.5m
1m
1.5m
1:33
1/3
2.5m
2m
0
1m
2m
3m
0
1:50
1m
2m
3m
4m
5m
CAD FILE NAME: P:0CAD000SPEM**
MODEL UPDATED:
DWG. FILE UPDATED:
MANUAL CHANGES MADE: YES NO YES NO YES NO
PROJECT MANAGER
ENGINEERING MANAGER
AREA PROJECTENGINEER
REFERENCE DRAWINGS
SAFETY SHARE:
APPROVAL DATE
CONTRACT
NO.
SAFETY SHARE :
BA6CVA1.IGR
NOTICE: THIS DRAWING HAS NOT BEEN PUBLISHED AND IS THE SOLE
PROPERTY OF FLUOR AND IS LENT TO THE BORROWER FOR THEIR
CONFIDENTIAL USE ONLY, AND IN CONSIDERATION OF THE LOAN OF THIS
DRAWING, THE BORROWER PROMISES AND AGREES TO RETURN IT UPON
REQUEST AND AGREES THAT IT WILL NOT BE REPRODUCED, COPIED LENT
OR OTHERWISE DISPOSED OF DIRECTLY OR INDIRECTLY, NOR USED FOR
ANY OTHER PURPOSE OTHER THAN WHICH IT IS FURNISHED.
NONE
Apr 2011
240K-C2-
3230
06015 B
LSH
3230
06015 B
LAH P1
ES
V V
V V
V
V V
V
V
V
V
V V V
3230
06004
ZAHH
P1
3230
06004
ZSHH
A,B
3230
06005
ZSHH
C,D
3230
06004
ZAHH
P1
3230
06004
ZSH
3230
06005
ZAH
3230
06004
ZSHH
C.D
3230
06005
ZAHH
3230
06005
ZSHH
A,B
3230
06004
ZSH
3230
06005
ZAHH
3230
06005
ZAH
3230
06004
ZAH
P2
3230
06005
ZSH
3230
06005
ZSH
3230
06004
ZAH
P2
P1
P2
P1
P2
RHS
RHS
C,D
LHS
RHS
A,B
LHS
RHS
LHS
C,D
LHS
A,B
V
V
V
V V
V
V
V
M
3230
06083
HS
3230
06083
XA
3230
06083
II FAULT
ST/SP
C2-3230-FA-186
C2-3230-DC-186
TO ATMOSPHERE
SIZE:
C2-3230-DC-186
HPGR FEED BIN DUST COLLECTOR
SIZE:
MOTOR:
C2-3230-FA-186
HPGR FEED BIN DUST COLLECTOR FAN
3230-AP-1300-C1A-2"-N
3230
06020
PDAH
ES
AFD
VENDOR VENDOR
PLANT AIR
4245
PLANT AIR
PLANT AIR DISTRIBUTION
HEADER
3001 3200-25J-017
D
4
F
B
A
3
2
1 5 6 8
E
7
C
REV.
APPROVED
CHK.
DES.
REV. DATE REVISION DESCRIPTION
CLIENT
LEAD ENGINEER
SCALE DRAWING NUMBER
CHECK DESIGN CHECK DRAWING
DESIGNED BY DRAWN BY
APPROVAL DATE
APPROVAL DATE
APPROVED
CHK.
DES.
REV. DATE REVISION DESCRIPTION REFERENCE DRAWING No.
1:100
0
1:200
5m
10m
0
5m
10m
15m
20m
1:500
10m
0
20m
30m
40m
50m
1:1000
0
100m
50m
1:20
0
0.5m
1m
1.5m
2m
0
1:25
0.5m
1m
1.5m
1:33
1/3
2.5m
2m
0
1m
2m
3m
0
1:50
1m
2m
3m
4m
5m
CAD FILE NAME: P:0CAD000SPEM**
MODEL UPDATED:
DWG. FILE UPDATED:
MANUAL CHANGES MADE: YES NO YES NO YES NO
PROJECT MANAGER
ENGINEERING MANAGER
AREA PROJECTENGINEER
REFERENCE DRAWINGS
SAFETY SHARE:
APPROVAL DATE
CONTRACT
NO.
SAFETY SHARE :
BA6CVA1.IGR
NOTICE: THIS DRAWING HAS NOT BEEN PUBLISHED AND IS THE SOLE
PROPERTY OF FLUOR AND IS LENT TO THE BORROWER FOR THEIR
CONFIDENTIAL USE ONLY, AND IN CONSIDERATION OF THE LOAN OF THIS
DRAWING, THE BORROWER PROMISES AND AGREES TO RETURN IT UPON
REQUEST AND AGREES THAT IT WILL NOT BE REPRODUCED, COPIED LENT
OR OTHERWISE DISPOSED OF DIRECTLY OR INDIRECTLY, NOR USED FOR
ANY OTHER PURPOSE OTHER THAN WHICH IT IS FURNISHED.
NONE
Apr 2011
240K-C2-
3230
06103 A
ST
3230
06103 A
SE
3230
06107 B
TE
HH, P1
H, P2
3230
06108
NA
P1
3230
06108
NS
3230
36181 H
TI
3230
36181 G
TE
3230
36181 G
TI
BRG
FRONT
H, P2
HH, P1
3230
36181 H
TE
BRG
REAR
H, P2
HH, P1
3230
36182 H
TE
3230
36182 G
TE
3230
36182 G
TI
3230
36182 H
TI
BRG
FRONT
H, P2
HH, P1
3230
06115 B
LAH
3230
06106 B
TI HH, P1
H, P2
3230
06106 B
TE
3230
06104
ZAH LHS
P2
3230
06103 B
ST
3230
06102
HSA
3230
06115 B
LSH
3230
06103 B
SE
3230
06101
HSA
3230
06101
HSS
3230
06105
ZSHH
3230
06102
HSS
RHS
A,B
3230
06105
ZSH
3230
06103
SDI
3230
06108 B
XS
3230
06104
ZSHH
3230
06108 A
XS
3230
06104
ZSH
A,B
3230
06103 B
SI
3230
06117
LIC
3230
06107 A
TI
3230
06103 A
SI
3230
06107 A
TE
HH, P1
H, P2
3230
06107 B
TI
3230
06110
WIC
H, P2
HH, P2
L, P2
LL, P2
3230
06106 A
TI HH, P1
H, P2
3230
06106 A
TE
A-B
3230
06110
WIT
3230
06117
LE
3230
06105
ZAH 3230
06110
WE
3230
06131
AI
3230
06131
AT
A,B
A,B
RHS
P2
H, P1
P1
P1
RHS
A,B
I
M
A
G
E
BRG
REAR
H, P2
HH, P1
RHS LHS LHS
RHS
LHS
A-B
P1
LHS
A,B
C2-3230-CV-056
C2-3230-ST-253
C2-3230-CR-027
C2-3230-ST-227
C2-3230-SL-063
C2-3230-ST-233
C2-3230-MD-037
C2-3230-ST-213
C2-3230-DV-037
VENDOR
TEAR
3230
06117
LIT
DUCTING
VENDOR
VENDOR
MOTOR CONTROL SYSTEM
CRUSHER LUBRICATION
AND COOLING SYSTEM
3230
36183
II
3230
36183
XA
3230
36183
HS
FAULT
J/SP
SIZE:
MATERIAL:
MOTOR:
C2-3230-CV-056
CR-027 FEED CONVEYOR
SIZE:
C2-3230-DV-037
CR-027 FEED DIVERTER DRIVE
SIZE:
C2-3230-ST-233
CR-027 FEED CHUTE
SIZE:
C2-3230-ST-253
CR-027 DISCHARGE CHUTE
SIZE:
C2-3230-SL-063
CR-027 FEED CONVEYOR BELT SCALE
SIZE:
C2-3230-MD-037
CR-027 FEED METAL DETECTOR
SIZE:
C2-3230-ST-227
CR-027 FEED CONVEYOR HEAD CHUTE
SIZE:
C2-3230-ST-213
CR-027 DIVERTER CHUTE
SIZE:
C2-3230-CR-027
HPGR NO.7
P.O NO.:
VENDOR DWG NO.:
VENDOR:
P.O NO.:
VENDOR DWG NO.:
VENDOR:
3230
06110
SE
3230
36182
II
3230
36182
XA
3230
36182
HS
FAULT
J/SP
AFD
3230
36181
II
3230
36181
XA
3230
36181
HS
FAULT
J/SP
AFD
FC
V1
3230
06181
II
3230
06181
XA
3230
06181
HS
FAULT
J/SP
3230
06108
XA
P1
RHS
LHS
3230
06115 B
LE
3230
06115 A
LAH
3230
06115 A
LSH
P1
3230
06115 A
LE
TER CRUSHER PRODUCT
CR-027 DISCHARGE
CONVEYOR , C2-3230-CV-027
1965 3200-25J-074
3230-LIC-060-16
BIN LEVEL CONTROL,
C2-3230-BN-037
2077
3200-25J-060
DUST
HPGR DUST COLLECTOR,
C2-3230-DC-192
2078 3200-25J-064
HPGR FEED
HPGR CRUSHER FEEDER
NO.11, C2-3230-FE-063
2079 3200-25J-060
CRUSHER FEEDER
HPGR FEED CONTROL,
C2-3230-FE-063
2085
3200-25J-060 T3
T3
T1
ES
V
ES
ES
ES
ES
ES
V
ES
AG
KM
LT
ISSUED FOR CLIENT REVIEW
23-Dec-11
B
RP
ISSUED FOR COMBINED REVIEW
23-Jun-11
A
12/23/2011
K. MUNDY
A. GUNSON
T. OH
L. TAMELIN
1/3/2012
10:30:40
AM
WBS: 3230
B
PIPING AND INSTRUMENTATION DIAGRAM
TERTIARY CRUSHING
3200-25J-061
HPGR NO. 7
LHS
RHS
A,B
V V
V
V
V V
V
V
V
V
V
3230
06104
ZAHH
3230
06105
ZAHH
P1 P1
3230
06121
VE
3230
06121
VT
3230
06121
VI
3230
06122
LE
3230
06122
LSL
3230
06122
LA
3230
06123
TE
3230
06123
TI
V
V
V V
V
L, P2
T3
H, P2
HH, P1
GEAR
REDUCER
H, P2
HH, P1
ES
V
VENDOR
DUST
HPGR DUST COLLECTOR,
C2-3230-DC-193
4185 3200-25J-064
DUST
HPGR DUST COLLECTOR,
C2-3230-DC-191
4195 3200-25J-064
HPGR FEED BYPASS
C2-3230-CV-027
4230 3200-25J-074
DUCTING
DUCTING
AFD
D
4
F
B
A
3
2
1 5 6 8
E
7
C
REV.
APPROVED
CHK.
DES.
REV. DATE REVISION DESCRIPTION
CLIENT
LEAD ENGINEER
SCALE DRAWING NUMBER
CHECK DESIGN CHECK DRAWING
DESIGNED BY DRAWN BY
APPROVAL DATE
APPROVAL DATE
APPROVED
CHK.
DES.
REV. DATE REVISION DESCRIPTION REFERENCE DRAWING No.
1:100
0
1:200
5m
10m
0
5m
10m
15m
20m
1:500
10m
0
20m
30m
40m
50m
1:1000
0
100m
50m
1:20
0
0.5m
1m
1.5m
2m
0
1:25
0.5m
1m
1.5m
1:33
1/3
2.5m
2m
0
1m
2m
3m
0
1:50
1m
2m
3m
4m
5m
CAD FILE NAME: P:0CAD000SPEM**
MODEL UPDATED:
DWG. FILE UPDATED:
MANUAL CHANGES MADE: YES NO YES NO YES NO
PROJECT MANAGER
ENGINEERING MANAGER
AREA PROJECTENGINEER
REFERENCE DRAWINGS
SAFETY SHARE:
APPROVAL DATE
CONTRACT
NO.
SAFETY SHARE :
BA6CVA1.IGR
NOTICE: THIS DRAWING HAS NOT BEEN PUBLISHED AND IS THE SOLE
PROPERTY OF FLUOR AND IS LENT TO THE BORROWER FOR THEIR
CONFIDENTIAL USE ONLY, AND IN CONSIDERATION OF THE LOAN OF THIS
DRAWING, THE BORROWER PROMISES AND AGREES TO RETURN IT UPON
REQUEST AND AGREES THAT IT WILL NOT BE REPRODUCED, COPIED LENT
OR OTHERWISE DISPOSED OF DIRECTLY OR INDIRECTLY, NOR USED FOR
ANY OTHER PURPOSE OTHER THAN WHICH IT IS FURNISHED.
NONE
Apr 2011
240K-C2-
M
AIR
CANNON
AIR
CANNON
3230
06203 B
SE
3230
06282 H
TI
BRG
REAR
H,P2
HH,P1
3230
06201
HSA
3230
06281
II
3230
06203 B
SI
3230
06208 B
TI
3230
06208 B
XS
3230
06238 B
KL
3230
06208
XA
3230
06203 A
SE
3230
06282 G
TE
3230
06238 A
KL
AIR
CANNON
3230
06281
HS
3230
06219
PDAH
3230
06202
HSS
3230
06207 B
TI
3230
06281
XA
3230
06282 G
TI
3230
06216
LE
3230
06282
II
3230
06282 H
TE
3230
06236 A
LI
3230
06203 B
ST
3230
06216
LT
3230
06208 B
TE
3230
06207 B
TE
3230
06208 A
XS
3230
06215 A
LSH
3230
06218 B
KL
3230
06236
LI
3230
06282
XA FAULT
3230
06215 A
LAH
3230
06236
LE
3230
06236
LT
3230
06202
HSA
3230
06206 A
TE
3230
06203 A
SI
3230
06207 A
TE
3230
06217
LS
3230
06217
LA
L, P1
3230
06216 A
LI
3230
06201
HSS
3230
06218 A
KL
3230
06216
LIC
DUCTING
FAULT
BRG
FRONT
H,P2
HH,P1
ST/SP
H,P2
HH,P1
L, P2
AIR
CANNON
C2-3230-DC-187
3230-AP1085-C1A-2"-N
C2-3230-ST-174
C2-3230-FA-187
C2-3230-BN-038
C2-3230-FE-064 C2-3230-ST-194
C2-3230-AV-032
C2-3230-AV-031
C2-3230-AV-030
C2-3230-AV-029
SIZE:
MATERIAL:
CAPACITY:
TRIM:
C2-3230-BN-038
HPGR FEED SURGE BIN NO.8
TO ATMOSPHERE
SIZE:
C2-3230-ST-194
HPGR FEEDER NO.8 HEAD CHUTE
SIZE:
C2-3230-DC-187
HPGR FEED BIN DUST COLLECTOR
SIZE:
C2-3230-ST-174
HPGR FEEDER NO.8 SKIRT
SIZE:
C2-3230-AV-029
HPGR SURGE BIN AIR CANNON NO. 29
SIZE:
C2-3230-AV-030
HPGR SURGE BIN AIR CANNON NO. 30
SIZE:
C2-3230-AV-031
HPGR SURGE BIN AIR CANNON NO. 31
SIZE:
C2-3230-AV-032
HPGR SURGE BIN AIR CANNON NO. 32
H,P2
HH,P1
L, P2
3230
06203 A
ST
3230
06203
SDI
H,P1
HH, P1
H, P2
HH, P1
H, P2 P1
3230
06211
XA
+
A-D
3230
06206 A
TI
3230
06207 A
TI HH, P2
H, P1
HH, P2
H, P1
RHS
LHS
A,B
TEAR
P1
LHS
A,B
P1
RHS
A,B
P1
TO BE CONTINUED ON
PID 3200-25J-060
HPGR DISCHARGE
HPGR SPEED CONTROL,
C2-3230-CR-028
2109 3200-25J-063
HPGR FEED
HPGR FEED CONVEYOR NO.8,
C2-3230-CV-057
2111 3200-25J-063
CONVEYOR WEIGHT
HPGR FEED CONTROL,
C2-3230-CV-057
2113
3200-25J-063
DUST
HPGR DUST COLLECTOR,
C2-3230-DC-079
2126 3200-25J-064
HPGR FEED
TERTIARY CRUSHER SURGE
BIN FEED CONVEYOR NO.2,
2132 3200-25J-060
C2-3240-CV-041
T5
ES
ES
ES
ES
ES
AG
KM
LT
ISSUED FOR CLIENT REVIEW
23-Dec-11
B
RP
ISSUED FOR COMBINED REVIEW
23-Jun-11
A
12/23/2011
K. MUNDY
A. GUNSON
T. OH
L. TAMELIN
1/3/2012
10:33:55
AM
WBS: 3230
B
PIPING AND INSTRUMENTATION DIAGRAM
TERTIARY CRUSHING
3200-25J-062
HPGR NO. 8 FEEDER
RHS
LHS
RHS LHS
SIZE:
MOTOR:
C2-3230-FE-064
HPGR CRUSHER FEEDER NO.8
SIZE:
MOTOR:
C2-3230-FA-187
HPGR FEED BIN DUST COLLECTOR FAN
AFD
3230
06215 B
LSH
3230
06215 B
LAH P1
ES
LHS
RHS
A,B
V V
V V
V V
V V
V
V
V
V
V V
3230
06205
ZSHH
C,D
LHS
C,D
P1
P2
3230
06205
ZSH
RHS
A,B
3230
06205
ZAHH
3230
06204
ZAHH
P1
3230
06204
ZAH
P2
RHS
LHS
A,B
3230
06205
ZSHH
A,B
3230
06204
ZAHH
V
P1
V
V
3230
06204
ZSH
3230
06204
ZAH
P2
V
3230
06204
ZSHH
A,B
3230
06204
ZSH
3230
06205
ZAH
LHS
V
3230
06204
ZSHH
C.D
V
V
LHS
RHS
C,D
3230
06205
ZAH
3230
06205
ZSH
3230
06205
ZAHH
V
P1
P2
RHS
M
3230
06283
XA
ST/SP
3230
06283
HS
C2-3230-FA-188
FAULT
C2-3230-DC-188
TO ATMOSPHERE
3230
06283
II
SIZE:
C2-3230-DC-188
HPGR FEED BIN DUST COLLECTOR
SIZE:
MOTOR:
C2-3230-FA-188
HPGR FEED BIN DUST COLLECTOR FAN
3230-AP-1301-C1A-2"-N
PLANT AIR
4247
ES
VENDOR VENDOR
3230
06220
PDAH
PLANT AIR
PLANT AIR DISTRIBUTION
4252
D
4
F
B
A
3
2
1 5 6 8
E
7
C
REV.
APPROVED
CHK.
DES.
REV. DATE REVISION DESCRIPTION
CLIENT
LEAD ENGINEER
SCALE DRAWING NUMBER
CHECK DESIGN CHECK DRAWING
DESIGNED BY DRAWN BY
APPROVAL DATE
APPROVAL DATE
APPROVED
CHK.
DES.
REV. DATE REVISION DESCRIPTION REFERENCE DRAWING No.
1:100
0
1:200
5m
10m
0
5m
10m
15m
20m
1:500
10m
0
20m
30m
40m
50m
1:1000
0
100m
50m
1:20
0
0.5m
1m
1.5m
2m
0
1:25
0.5m
1m
1.5m
1:33
1/3
2.5m
2m
0
1m
2m
3m
0
1:50
1m
2m
3m
4m
5m
CAD FILE NAME: P:0CAD000SPEM**
MODEL UPDATED:
DWG. FILE UPDATED:
MANUAL CHANGES MADE: YES NO YES NO YES NO
PROJECT MANAGER
ENGINEERING MANAGER
AREA PROJECTENGINEER
REFERENCE DRAWINGS
SAFETY SHARE:
APPROVAL DATE
CONTRACT
NO.
SAFETY SHARE :
BA6CVA1.IGR
NOTICE: THIS DRAWING HAS NOT BEEN PUBLISHED AND IS THE SOLE
PROPERTY OF FLUOR AND IS LENT TO THE BORROWER FOR THEIR
CONFIDENTIAL USE ONLY, AND IN CONSIDERATION OF THE LOAN OF THIS
DRAWING, THE BORROWER PROMISES AND AGREES TO RETURN IT UPON
REQUEST AND AGREES THAT IT WILL NOT BE REPRODUCED, COPIED LENT
OR OTHERWISE DISPOSED OF DIRECTLY OR INDIRECTLY, NOR USED FOR
ANY OTHER PURPOSE OTHER THAN WHICH IT IS FURNISHED.
NONE
Apr 2011
240K-C2-
3230
06303 A
ST
3230
06303 A
SE
3230
06307 B
TE
HH, P1
H, P2
3230
06309
NA
P1
3230
06309
NS
3230
36381 H
TI
3230
36381 G
TE
3230
36381 G
TI
BRG
FRONT
H, P2
HH, P1
3230
36381 H
TE
BRG
REAR
H, P2
HH, P1
3230
36382 H
TE
3230
36382 G
TE
3230
36382 G
TI
3230
36382 H
TI
BRG
FRONT
H, P2
HH, P1
3230
06315 B
LAH
3230
06306 B
TI HH, P1
H, P2
3230
06306 B
TE
3230
06304
ZAH
RHS
P2
3230
06303 B
ST
3230
06302
HSA
3230
06315 B
LSH
3230
06303 B
SE
3230
06301
HSA
3230
06301
HSS
3230
06305
ZSHH
3230
06302
HSS
RHS
A,B
3230
06305
ZSH
3230
06303
SDI
3230
06308 B
XS
3230
06304
ZSHH
3230
06308 A
XS
3230
06304
ZSH
A,B
3230
06303 B
SI
3230
06317
LIC
3230
06307 A
TI
3230
06303 A
SI
3230
06307 A
TE
HH, P1
H, P2
3230
06307 B
TI
3230
06310
WIC
H, P2
HH, P2
L, P2
LL, P2
3230
06306 A
TI HH, P1
H, P2
3230
06306 A
TE
A-B
3230
06310
WIT
3230
06317
LE
3230
06305
ZAH 3230
06310
WE
3230
06331
AI
3230
06331
AT
A,B
LHS
P2
H, P1
P1
P1
LHS
A,B
I
M
A
G
E
BRG
REAR
H, P2
HH, P1
LHS
RHS LHS
RHS
LHS
A-B
P1
RHS
A,B
C2-3230-CV-057
C2-3230-ST-254
C2-3230-CR-028
C2-3230-ST-228
C2-3230-SL-064
C2-3230-ST-234
C2-3230-MD-038
C2-3230-ST-214
C2-3230-DV-038
VENDOR
TEAR
3230
06317
LIT
DUCTING
VENDOR
VENDOR
MOTOR CONTROL SYSTEM
CRUSHER LUBRICATION
AND COOLING SYSTEM
3230
36383
II
3230
36383
XA
3230
36383
HS
FAULT
J/SP
SIZE:
MATERIAL:
MOTOR:
C2-3230-CV-057
CR-028 FEED CONVEYOR
SIZE:
C2-3230-DV-038
CR-028 FEED DIVERTER DRIVE
SIZE:
C2-3230-ST-234
CR-028 FEED CHUTE
SIZE:
C2-3230-ST-254
CR-028 DISCHARGE CHUTE
SIZE:
C2-3230-SL-064
CR-028 FEED CONVEYOR BELT SCALE
SIZE:
C2-3230-MD-038
CR-028 FEED METAL DETECTOR
SIZE:
C2-3230-ST-228
CR-028 FEED CONVEYOR HEAD CHUTE
SIZE:
C2-3230-ST-214
CR-028 DIVERTER CHUTE
SIZE:
C2-3230-CR-028
HPGR NO.8
P.O NO.:
VENDOR DWG NO.:
VENDOR:
P.O NO.:
VENDOR DWG NO.:
VENDOR:
3230
06310
SE
3230
36382
II
3230
36382
XA
3230
36382
HS
FAULT
J/SP
AFD
3230
36381
II
3230
36381
XA
3230
36381
HS
FAULT
J/SP
AFD
FC
V1
3230
06381
II
3230
06381
XA
3230
06381
HS
FAULT
J/SP
3230
06308
XA
P1
RHS
LHS
3230
06315 B
LE
3230
06315 A
LAH
3230
06315 A
LSH
P1
3230
06315 A
LE
TER CRUSHER PRODUCT
CR-028 DISCHARGE
CONVEYOR, C2-3230-CV-027
1966 3200-25J-074
3230-LIC-06216
BIN LEVEL CONTROL,
C2-3230-BN-038
2109
3200-25J-062
DUST
HPGR DUST COLLECTOR,
C2-3230-DC-192
2110 3200-25J-064
HPGR FEED
HPGR CRUSHER FEEDER
NO.8, C2-3230-FE-064
2111 3200-25J-062
CRUSHER FEED
HPGR FEED CONTROL,
C2-3230-FE-064
2113
3200-25J-062
T1
T3
T3
ES
ES
ES
V
V
ES
ES
V
ES
V
ES
AG
KM
LT
ISSUED FOR CLIENT REVIEW
23-Dec-11
B
RP
ISSUED FOR COMBINED REVIEW
23-Jun-11
A
12/23/2011
K. MUNDY
A. GUNSON
T. OH
L. TAMELIN
1/3/2012
10:37:26
AM
WBS: 3230
B
PIPING AND INSTRUMENTATION DIAGRAM
TERTIARY CRUSHING
3200-25J-063
HPGR NO. 8
LHS
RHS
A,B
V
V
V V
V
V V
V
3230
06304
ZAHH
3230
06305
ZAHH
A,B A,B
P1 P1
V
3230
06321
VE
3230
06321
VT
3230
06321
VI
3230
06322
LE
3230
06322
LSL
3230
06322
LA
3230
06323
TE
3230
06323
TI
V
V
V V
V
L, P2
T3
H, P2
HH, P1
GEAR
REDUCER
H, P2
HH, P1
ES
V
VENDOR
DUST
HPGR DUST COLLECTOR,
C2-3230-DC-193
4186 3200-25J-064
HPGR FEED BYPASS
C2-3230-CV-027
4231 3200-25J-074
DUST
HPGR DUST COLLECTOR,
C2-3230-DC-191
4248 3200-25J-064
AFD
M
M M
M
M M
M M
3230
06404
PDAH
3230
06402
PDAH
3230
06403
PDAH
3230
06487
HS
ST/SP
3230
06485
II
3230
06488
XA
3230
06488
II
3230
06483
HS
ST/SP
3230
06485
HS
ST/SP
3230
06482
HS
3230
06495
XA
3230
06484
HS
3230
06493
II
3230
06486
HS
3230
06494
XA
3230
06492
HS
3230
06495
II
3230
06497
XA
3230
06493
HS
ST/SP
3230
06496
II
3230
06489
II
3230
06496
XA
3230
06489
HS
ST/SP
3230
06495
HS
ST/SP
3230
06488
HS
3230
06483
XA
3230
06482
XA
3230
06484
II
3230
06498
XA
3230
06499
XA
3230
06497
II
3230
06494
HS
3230
06498
II
3230
06485
XA
3230
06496
HS
3230
06497
HS
ST/SP
3230
06484
XA
3230
06486
II
3230
06482
II
3230
06492
II
3230
06487
XA
3230
06493
XA
3230
06499
HS
ST/SP
3240
06498
HS
3230
06486
XA
VENDOR
3230
06499
II
3230
06492
XA
3230
06487
II
3230
06483
II
3230
06494
II
3230
06489
XA
DUST
DUST CONTROL POINTS,
CV-3230-CV-050
4181 3200-25J-049
DUST
DUST CONTROL POINTS,
C2-3230-CV-051
4182 3200-25J-051
DUST
DUST CONTROL POINTS,
C2-3230-CV-052
4183 3200-25J-053
HPGR DISCH. CONVEYOR
NO.1, C2-3230-CV-017
4162 3200-25J-073
HPGR DISCH. CONVEYOR
NO.1, C2-3230-CV-017
4163 3200-25J-073
DUST
DUST CONTROL POINTS
C2-3230-ST-184
4167 3200-25J-054
DUST
DUST CONTROL POINTS,
C2-3230-CV-053
4184 3200-25J-055
DUST COLLECTION POINTS
3300 3200-25J-076
DUST
DUST CONTROL POINTS
C2-3230-ST-216
1997 3200-25J-051
DUST
DUST CONTROL POINTS
C2-3230-ST-183
2053 3200-25J-052
DUST
DUST CONTROL POINTS
C2-3230-CR-015
4178 3200-25J-049
DUST
DUST CONTROL POINTS
C2-3230-CR-016
4179 3200-25J-051
DUST
DUST CONTROL POINTS
C2-3230-CR-017
4180 3200-25J-053
DUST
DUST CONTROL POINTS
C2-3230-ST-194
2126 3200-25J-062
DUST
DUST CONTROL POINTS
C2-3230-CR-018
4170 3200-25J-055
DUST
DUST CONTROL POINTS
C2-3230-ST-182
2025 3200-25J-050
DUST
DUST CONTROL POINTS
C2-3230-ST-181
1356 3200-25J-048
DUST CONTROL POINTS
C2-3230-ST-191
2108 3200-25J-056
DUST CONTROL POINTS
C2-3230-ST-193
2124 3200-25J-060
HPGR DISCH. CONVEYOR
NO.1, C2-3230-CV-017
4155 3200-25J-073
DUST
DUST CONTROL POINTS
C2-3230-ST-217
2012 3200-25J-053
HPGR DISCH. CONVEYOR
NO.1, C2-3230-CV-017
4158 3200-25J-073
DUST
DUST CONTROL POINTS
C2-3230-ST-225
2051 3200-25J-057
DUST CONTROL POINTS
C2-3230-ST-192
2117 3200-25J-058
DUST
DUST CONTROL POINTS
C2-3230-ST-218
2033 3200-25J-055
DUST
DUST CONTROL POINTS
C2-3230-ST-227
2078 3200-25J-061
DUST
DUST CONTROL POINTS
C2-3230-ST-226
2067 3200-25J-059
DUST COLLECTOR POINTS
3254
DUST
DUST CONTROL POINTS
C2-3230-ST-228
2110 3200-25J-063
DUST
DUST CONTROL POINTS
C2-3230-ST-215
1826 3200-25J-049
VENDOR
VENDOR
FAULT
ST/SP
FAULT
FAULT FAULT
ST/SP
FAULT
FAULT
FAULT
ST/SP ST/SP
FAULT
FAULT
FAULT
FAULT
ST/SP
ST/SP
FAULT
FAULT
FAULT
FAULT
ST/SP
FAULT
ST/SP
SIZE:
C2-3230-FA-193
HPGR DUST COLLECTOR FAN NO.7
SIZE:
C2-3230-FA-192
HPGR DUST COLLECTOR FAN NO.6
SIZE:
MATERIAL:
MOTOR:
C2-3230-DC-193
HPGR DUST COLLECTOR NO.7
C2-3230-DC-162
SIZE:
MATERIAL:
MOTOR:
C2-3230-DC-079
HPGR DUST COLLECTOR NO.8
TO ATMOSPHERE
C2-3230-FA-162
SIZE:
MATERIAL:
MOTOR:
C2-3230-DC-192
HPGR DUST COLLECTOR NO.6
SIZE:
MOTOR:
C2-3230-ZV-079
HPGR DUST COLLECTOR ROTARY VALVE NO.8
SIZE:
C2-3230-FA-191
HPGR DUST COLLECTOR FAN NO.5
SIZE:
MATERIAL:
MOTOR:
C2-3230-DC-161
HPGR DUST COLLECTOR NO.1
C2-3230-ZV-079
SIZE:
MATERIAL:
MOTOR:
C2-3230-DC-191
HPGR DUST COLLECTOR NO.5
C2-3230-FA-163
C2-3230-FA-102
C2-3230-FA-191
SIZE:
MOTOR:
C2-3230-ZV-192
HPGR DUST COLLECTOR ROTARY VALVE NO.6
SIZE:
MOTOR:
C2-3230-ZV-191
HPGR DUST COLLECTOR ROTARY VALVE NO.5
TO ATMOSPHERE
TO ATMOSPHERE
SIZE:
MOTOR:
C2-3230-ZV-193
HPGR DUST COLLECTOR ROTARY VALVE NO.7
SIZE:
C2-3230-FA-161
HPGR DUST COLLECTOR FAN NO.1
C2-3230-ZV-193
C2-3230-DC-191
SIZE:
C2-3230-FA-102
HPGR DUST COLLECTOR FAN NO.8
C2-3230-DC-192
SIZE:
C2-3230-FA-041
HPGR DUST COLLECTOR FAN NO.4
SIZE:
C2-3230-FA-163
HPGR DUST COLLECTOR FAN NO.3
C2-3230-ZV-192
C2-3230-DC-041
C2-3230-ZV-191
TO ATMOSPHERE
C2-3230-FA-041
AG
KM
LT
ISSUED FOR CLIENT REVIEW
23-Dec-11
B
RP
ISSUED FOR COMBINED REVIEW
13-Jul-11
A
12/23/2011
K. MUNDY
A. GUNSON
T. OH
L. TAMELIN
12/23/2011
3:06:46
PM
WBS: 3230
B
PIPING AND INSTRUMENTATION DIAGRAM
TERTIARY CRUSHING
3200-25J-064
TERTIARY CRUSHER PLANT DUST COLLECTION
SIZE:
C2-3230-FA-162
HPGR DUST COLLECTOR FAN NO.2
SIZE:
MATERIAL:
MOTOR:
C2-3230-DC-041
HPGR DUST COLLECTOR NO.4
C2-3230-DC-161
SIZE:
MATERIAL:
MOTOR:
C2-3230-DC-163
HPGR DUST COLLECTOR NO.3
SIZE:
MATERIAL:
MOTOR:
C2-3230-DC-162
HPGR DUST COLLECTOR NO.2
SIZE:
MOTOR:
C2-3230-ZV-161
HPGR DUST COLLECTOR ROTARY VALVE NO.1
SIZE:
MOTOR:
C2-3230-ZV-086
HPGR DUST COLLECTOR ROTARY VALVE NO.4
SIZE:
MOTOR:
C2-3230-ZV-162
HPGR DUST COLLECTOR ROTARY VALVE NO.2
C2-3230-ZV-163
C2-3230-ZV-162
C2-3230-ZV-161
C2-3230-DC-193
TO ATMOSPHERE
C2-3230-FA-193
C2-3230-DC-163
C2-3230-DC-079
TO ATMOSPHERE
TO ATMOSPHERE
C2-3230-FA-192
SIZE:
MOTOR:
C2-3230-ZV-163
HPGR DUST COLLECTOR ROTARY VALVE NO.3
C2-3230-ZV-086
TO ATMOSPHERE
C2-3230-FA-161
D
4
F
B
A
3
2
1 5 6 8
E
7
C
REV.
APPROVED
CHK.
DES.
REV. DATE REVISION DESCRIPTION
CLIENT
LEAD ENGINEER
SCALE DRAWING NUMBER
CHECK DESIGN CHECK DRAWING
DESIGNED BY DRAWN BY
APPROVAL DATE
APPROVAL DATE
APPROVED
CHK.
DES.
REV. DATE REVISION DESCRIPTION REFERENCE DRAWING No.
1:100
0
1:200
5m
10m
0
5m
10m
15m
20m
1:500
10m
0
20m
30m
40m
50m
1:1000
0
100m
50m
1:20
0
0.5m
1m
1.5m
2m
0
1:25
0.5m
1m
1.5m
1:33
1/3
2.5m
2m
0
1m
2m
3m
0
1:50
1m
2m
3m
4m
5m
CAD FILE NAME: P:0CAD000SPEM**
MODEL UPDATED:
DWG. FILE UPDATED:
MANUAL CHANGES MADE: YES NO YES NO YES NO
PROJECT MANAGER
ENGINEERING MANAGER
AREA PROJECTENGINEER
REFERENCE DRAWINGS
SAFETY SHARE:
APPROVAL DATE
CONTRACT
NO.
SAFETY SHARE :
BA6CVA1.IGR
NOTICE: THIS DRAWING HAS NOT BEEN PUBLISHED AND IS THE SOLE
PROPERTY OF FLUOR AND IS LENT TO THE BORROWER FOR THEIR
CONFIDENTIAL USE ONLY, AND IN CONSIDERATION OF THE LOAN OF THIS
DRAWING, THE BORROWER PROMISES AND AGREES TO RETURN IT UPON
REQUEST AND AGREES THAT IT WILL NOT BE REPRODUCED, COPIED LENT
OR OTHERWISE DISPOSED OF DIRECTLY OR INDIRECTLY, NOR USED FOR
ANY OTHER PURPOSE OTHER THAN WHICH IT IS FURNISHED.
NONE
Apr 2011
240K-C2-
3230
06401
PDAH
VENDOR
3230
06414
PDAH
VENDOR
DUST
DUST CONTROL POINTS
C2-3230-CR-027
4185 3200-25J-061
DUST
DUST CONTROL POINTS
C2-3230-CR-028
4186 3200-25J-063
DUST
DUST CONTROL POINTS
C2-3230-CR-025
4187 3200-25J-057
3230
06413
PDAH
VENDOR
DUST
DUST CONTROL POINTS
C2-3230-CR-026
4190 3200-25J-059
VENDOR
DUST
DUST CONTROL POINTS
C2-3230-CV-054
4194 3200-25J-057
DUST
DUST CONTROL POINTS
C2-3230-CV-056
4195 3200-25J-061
DUST
DUST CONTROL POINTS
C2-3230-CV-055
4197 3200-25J-059
VENDOR
DUST
DUST CONTROL POINTS
C2-3230-CV-057
4248 3200-25J-063
3230
06412
PDAH
3230
06411
PDAH
HPGR DISCH. CONVEYOR
NO.2, C2-3230-CV-018
4224 3200-25J-074
HPGR DISCH. CONVEYOR
NO.2, C2-3230-CV-018
4225 3200-25J-074
HPGR DISCH. CONVEYOR
NO.2, C2-3230-CV-018
4226 3200-25J-074
HPGR DISCH. CONVEYOR
NO.2, C2-3230-CV-018
4227 3200-25J-074
D
4
F
B
A
3
2
1 5 6 8
E
7
C
REV.
APPROVED
CHK.
DES.
REV. DATE REVISION DESCRIPTION
CLIENT
LEAD ENGINEER
SCALE DRAWING NUMBER
CHECK DESIGN CHECK DRAWING
DESIGNED BY DRAWN BY
APPROVAL DATE
APPROVAL DATE
APPROVED
CHK.
DES.
REV. DATE REVISION DESCRIPTION REFERENCE DRAWING No.
1:100
0
1:200
5m
10m
0
5m
10m
15m
20m
1:500
10m
0
20m
30m
40m
50m
1:1000
0
100m
50m
1:20
0
0.5m
1m
1.5m
2m
0
1:25
0.5m
1m
1.5m
1:33
1/3
2.5m
2m
0
1m
2m
3m
0
1:50
1m
2m
3m
4m
5m
CAD FILE NAME: P:0CAD000SPEM**
MODEL UPDATED:
DWG. FILE UPDATED:
MANUAL CHANGES MADE: YES NO YES NO YES NO
PROJECT MANAGER
ENGINEERING MANAGER
AREA PROJECTENGINEER
REFERENCE DRAWINGS
SAFETY SHARE:
APPROVAL DATE
CONTRACT
NO.
SAFETY SHARE :
BA6CVA1.IGR
NOTICE: THIS DRAWING HAS NOT BEEN PUBLISHED AND IS THE SOLE
PROPERTY OF FLUOR AND IS LENT TO THE BORROWER FOR THEIR
CONFIDENTIAL USE ONLY, AND IN CONSIDERATION OF THE LOAN OF THIS
DRAWING, THE BORROWER PROMISES AND AGREES TO RETURN IT UPON
REQUEST AND AGREES THAT IT WILL NOT BE REPRODUCED, COPIED LENT
OR OTHERWISE DISPOSED OF DIRECTLY OR INDIRECTLY, NOR USED FOR
ANY OTHER PURPOSE OTHER THAN WHICH IT IS FURNISHED.
NONE
Apr 2011
240K-C2-
AG
KM
LT
ISSUED FOR CLIENT REVIEW
23-Dec-11
B
RP
ISSUED FOR COMBINED REVIEW
19-Jul-11
A
12/23/2011
K.MUNDY
A. GUNSON
T. OH
L. TAMELIN
12/23/2011
3:07:26
PM
WBS: 3230
B
PIPING AND INSTRUMENTATION DIAGRAM
TERTIARY CRUSHING
3200-25J-065
HPGR NO. 1 LUBE SYSTEM
3230
36511
XS
3230
36511
XL
3230
36512
XS
3230
36512
XL
3230
36513
LAH
3230
36514
PAH
3230
36515
XS
3230
36515
XL
3230
36516
SI
3230
36517
SI
3230
36518
VI
3230
36519
LAHH
3230
36501
TI
3230
36502
TI
3230
36503
TI
3230
36504
TI
3230
36505
ZA
3230
36506
ZA
3230
36507
ZA
3230
36508
ZA
3230
36509
ZI
3230
36510
ZI
P2
P2
P2
H, P2
HH, P2
H, P2
H, P2
H, P2
GUIDE RAIL
LUBE
BEARING
LUBE
LUBE OIL
TANK
BEARING
LUBE
BEARING LUBE
SYSTEM MAIN
FIXED ROOL
MOVABLE ROLL
GEAR BOX
FEED
MOVABLE ROLL
LEFT
FIXED ROLL
LEFT
MOVABLE ROLL
RIGHT
FIXED ROLL
RIGHT
MOVABLE ROLL
LEFT
MOVABLE ROLL
LEFT
MOVABLE ROLL
LEFT
MOVABLE ROLL
RIGHT
MOVABLE ROLL
RIGHT
MOVABLE ROLL
RIGHT
T1
T1
3230
36714
PA
3230
36719
JDAH
3230
36717
SI
3230
36701
TI
P2
H, P2
3230
36702
TI H, P2
3230
36703
TI H, P2
3230
36704
TI H, P2
3230
36705
TI H, P2
3230
36706
TI H, P2
3230
36707
TI H, P2
3230
36708
ZA
3230
36709
ZAH
3230
36710
XL
3230
36710
XS
3230
36713
PDAH
LUBE OIL
PUMP
LUBE OIL
PRESSURE
FIXED ROLL
MOTOR
FIXED/MOVABLE
ROLL POWER
MOTOR SPEED
OIL SUMP
MOTOR
BEARING
GEAR BOX
BEARING
MOTOR
BEARING
MOTOR
WINDING
MOTOR
WINDING
MOTOR
WINDING
MOTOR
COUPLING
MOTOR
COUPLING
GEAR LUBE
OIL
LUBE OIL
FILTER
3230
36781
II
3230
36781
XA
3230
36781
HS
FAULT
J/SP
3230
36782
II
3230
36782
XA
3230
36782
HS
FAULT
J/SP
T1
T1
3230
36614
PA
3230
36618
ZI
3230
36619
ZI
3230
36601
TI H, P2
3230
36602
TI H, P2
3230
36603
TI H, P2
3230
36604
TI H, P2
3230
36605
TI H, P2
3230
36606
TI H, P2
3230
36607
TI H, P2
3230
36608
ZAH
3230
36609
ZAH
3230
36610
XL
3230
36610
XS
3230
36613
PDAH
LUBE OIL
PUMP
LUBE OIL
PRESSURE
FIXED ROLL
MOTOR
MOVABLE ROLL
LEFT POSITION
MOTOR SPEED
OIL SUMP
MOTOR
BEARING
GEAR BOX
BEARING
MOTOR
BEARING
MOTOR
WINDING
MOTOR
WINDING
MOTOR
WINDING
MOTOR
COUPLING
MOTOR
COUPLING
GEAR LUBE
OIL
LUBE OIL
FILTER
3230
36681
II
3230
36681
XA
3230
36681
HS
FAULT
J/SP
3230
36682
II
3230
36682
XA
3230
36682
HS
FAULT
J/SP
T1
T1
3230
36814
PI
3230
36815
PI
3230
36816
XS
3230
36816
XL
3230
36818
XS
3230
36818
XL
3230
36817
PAH
3230
36819
PDAH
3230
36813
PDAH
3230
36801
LAL
3230
36802
LAH
3230
36805
XL
3230
36805
XS
3230
36803
XL
3230
36803
XS
3230
36804
XL
3230
36804
XS
3230
36806
XL
3230
36806
XS
3230
36807
XL
3230
36807
XS
3230
36808
XL
3230
36808
XS
3230
36809
XL
3230
36809
XS
3230
36810
TI
3230
36617
SI
MOVABLE ROLL
RIGHT POSITION
H, P2
P2
P2
P2
P2
H, P2
H, P2
P2
A-B
HYDRAULIC SYST.
LEFT
HYDRAULIC SYST.
RIGHT
HYDRAULIC
PUMP A
HYDRAULIC
PUMP B
SOLENOID Y2
OIL FILTER
SOLENOID Y1
OIL FILTER LEFT
OIL FILTER RIGHT
OIL TANK
OIL TANK
SOLENOID Y4
BLOCK VALVE
SOLENOID Y8
SOLENOID Y11
SOLENOID Y3
SOLENOID Y9
BLOCK VALVE
HYDRAULIC
OIL TEMP.
3230
36882
II
3230
36882
XA
3230
36882
HS
FAULT
J/SP
3230
36881
II
3230
36881
XA FAULT
3230
36881
HS
J/SP
INSTRUMENT AIR
3079 3900-25J-022
3230-AI-1118-G1A-1/2"-N 1/2"x1/4"
3"x2"
CR-015 ROLL CONTROLS
CR-015 FIXED ROLL
DRIVE CONTROLS
CR-015 MOVABLE ROLL
DRIVE CONTROLS
CR-015 HYDRAULIC
SYSTEM
P.O NO.:
VENDOR DWG NO.:
VENDOR:
P.O NO.:
VENDOR DWG NO.:
VENDOR:
P.O NO.:
VENDOR DWG NO.:
VENDOR:
P.O NO.:
VENDOR DWG NO.:
VENDOR:
CR-015 ROLL CONTROLS
CR-015 MOVABLE ROLL
DRIVE CONTROLS
CR-015 FIXED ROLL
DRIVE CONTROLS CR-015 HYDRAULIC SYSTEM
AFD - MOVABLE ROLL
AFD - FIXED ROLL
HOSE BY VENDOR
32 MM ID
HOSE BY VENDOR
32 MM ID
HOSE BY VENDOR
32 MM ID
HOSE BY VENDOR
32 MM ID
CLOSED LOOP CWS
HEADER
3082 3200-25J-083
3230
36825
XA COMMON
ALARM
3230
36625
XA COMMON ALARM
3230
36725
XA
COMMON ALARM
3230
36525
XA
COMMON ALARM
H, P2
CLOSED LOOP CWR
HEADER
3078 3200-25J-084
CLOSED LOOP CWS
HEADER
4007 3200-25J-083
CLOSED LOOP CWS
HEADER
4008 3200-25J-083
CLOSED LOOP CWS
HEADER
4009 3200-25J-083
CLOSED LOOP CWS
HEADER
4010 3200-25J-083
CLOSED LOOP CWS
HEADER
4011 3200-25J-083
CLOSED LOOP CWR
HEADER
4012 3200-25J-084
CLOSED LOOP CWR
HEADER
4013 3200-25J-084
CLOSED LOOP CWR
HEADER
4014 3200-25J-084
CLOSED LOOP CWR
HEADER
4015 3200-25J-084
CLOSED LOOP CWR
HEADER
4016 3200-25J-084
3200-WF-1246-C1A-1-1/2"-N
3200-WF-1248-C1A-1-1/2"-N
3200-WF-1247-C1A-2"-N
3200-WF-1182-C1A-3"-N
3200-WF-1245-C1A-2"-N
3200-WF-1244-C1A-2"-N
3230-WF-1252-C1A-1-1/2"-N
3230-WF-1255-C1A-1-1/2"-N
3230-WF-1251-C1A-2"-N
3230-WF-1250-C1A-2"-N
3230-WF-1253-C1A-2"-N
3230-WF-1254-C1A-2"-N
D
4
F
B
A
3
2
1 5 6 8
E
7
C
REV.
APPROVED
CHK.
DES.
REV. DATE REVISION DESCRIPTION
CLIENT
LEAD ENGINEER
SCALE DRAWING NUMBER
CHECK DESIGN CHECK DRAWING
DESIGNED BY DRAWN BY
APPROVAL DATE
APPROVAL DATE
APPROVED
CHK.
DES.
REV. DATE REVISION DESCRIPTION REFERENCE DRAWING No.
1:100
0
1:200
5m
10m
0
5m
10m
15m
20m
1:500
10m
0
20m
30m
40m
50m
1:1000
0
100m
50m
1:20
0
0.5m
1m
1.5m
2m
0
1:25
0.5m
1m
1.5m
1:33
1/3
2.5m
2m
0
1m
2m
3m
0
1:50
1m
2m
3m
4m
5m
CAD FILE NAME: P:0CAD000SPEM**
MODEL UPDATED:
DWG. FILE UPDATED:
MANUAL CHANGES MADE: YES NO YES NO YES NO
PROJECT MANAGER
ENGINEERING MANAGER
AREA PROJECTENGINEER
REFERENCE DRAWINGS
SAFETY SHARE:
APPROVAL DATE
CONTRACT
NO.
SAFETY SHARE :
BA6CVA1.IGR
NOTICE: THIS DRAWING HAS NOT BEEN PUBLISHED AND IS THE SOLE
PROPERTY OF FLUOR AND IS LENT TO THE BORROWER FOR THEIR
CONFIDENTIAL USE ONLY, AND IN CONSIDERATION OF THE LOAN OF THIS
DRAWING, THE BORROWER PROMISES AND AGREES TO RETURN IT UPON
REQUEST AND AGREES THAT IT WILL NOT BE REPRODUCED, COPIED LENT
OR OTHERWISE DISPOSED OF DIRECTLY OR INDIRECTLY, NOR USED FOR
ANY OTHER PURPOSE OTHER THAN WHICH IT IS FURNISHED.
NONE
Apr 2011
240K-C2-
AG
KM
LT
ISSUED FOR CLIENT REVIEW
23-Dec-11
B
RP
ISSUED FOR COMBINED REVIEW
19-Jul-11
A
12/23/2011
K. MUNDY
A. GUNSON
T. OH
L. TAMELIN
12/23/2011
3:08:22
PM
WBS: 3230
B
PIPING AND INSTRUMENTATION DIAGRAM
TERTIARY CRUSHING
3200-25J-066
HPGR NO. 2 LUBE SYSTEM
3230
36911
XS
3230
36911
XL
3230
36912
XS
3230
36912
XL
3230
36913
LAH
3230
36914
PAH
3230
36915
XS
3230
36915
XL
3230
36916
SI
3230
36917
SI
3230
36918
VI
3230
36919
LAHH
3230
36901
TI
3230
36902
TI
3230
36903
TI
3230
36904
TI
3230
36905
ZA
3230
36906
ZA
3230
36907
ZA
3230
36908
ZA
3230
36909
ZI
3230
36910
ZI
P2
P2
P2
H, P2
HH, P2
H, P2
H, P2
H, P2
H, P2
GUIDE RAIL
LUBE
BEARING
LUBE
LUBE OIL
TANK
BEARING
LUBE
BEARING LUBE
SYSTEM MAIN
FIXED ROOL
MOVABLE ROLL
GEAR BOX
FEED
MOVABLE ROLL
LEFT
FIXED ROLL
LEFT
MOVABLE ROLL
RIGHT
FIXED ROLL
RIGHT
MOVABLE ROLL
LEFT
MOVABLE ROLL
LEFT
MOVABLE ROLL
LEFT
MOVABLE ROLL
RIGHT
MOVABLE ROLL
RIGHT
MOVABLE ROLL
RIGHT
T1
T1
3230
37114
PA
3230
37119
JDAH
3230
37117
SI
3230
37101
TI
P2
H, P2
3230
37102
TI H, P2
3230
37103
TI H, P2
3230
37104
TI H, P2
3230
37105
TI H, P2
3230
37106
TI H, P2
3230
37107
TI H, P2
3230
37108
ZAH
3230
37109
ZAH
3230
37110
XL
3230
37110
XS
3230
37113
PDA
LUBE OIL
PUMP
LUBE OIL
PRESSURE
FIXED ROLL
MOTOR
FIXED/MOVABLE
ROLL POWER
MOTOR SPEED
OIL SUMP
MOTOR
BEARING
GEAR BOX
BEARING
MOTOR
BEARING
MOTOR
WINDING
MOTOR
WINDING
MOTOR
WINDING
MOTOR
COUPLING
MOTOR
COUPLING
GEAR LUBE
OIL
LUBE OIL
FILTER
3230
37181
II
3230
37181
XA
3230
37181
HS
FAULT
J/SP
3230
37182
II
3230
37182
XA
3230
06682
HS
FAULT
J/SP
T1
T1
3230
37014
PA
3230
37018
ZI
3230
37019
ZI
3230
37001
TI H, P2
3230
37002
TI H, P2
3230
37003
TI H, P2
3230
37004
TI H, P2
3230
37005
TI H, P2
3230
37006
TI H, P2
3230
37007
TI H, P2
3230
37008
ZAH
3230
37009
ZAH
3230
37010
XL
3230
37010
XS
3230
37013
PDAH
LUBE OIL
PUMP
LUBE OIL
PRESSURE
FIXED ROLL
MOTOR
MOVABLE ROLL
LEFT POSITION
MOTOR SPEED
OIL SUMP
MOTOR
BEARING
GEAR BOX
BEARING
MOTOR
BEARING
MOTOR
WINDING
MOTOR
WINDING
MOTOR
WINDING
MOTOR
COUPLING
MOTOR
COUPLING
GEAR LUBE
OIL
LUBE OIL
FILTER
3230
37081
II
3230
37081
XA
3230
37081
HS
FAULT
J/SP
3230
37082
II
3230
37082
XA
3230
37082
HS
FAULT
J/SP
T1
T1
3230
37214
PI
3230
37215
PI
3230
37216
XS
3230
37216
XL
3230
37218
XS
3230
37218
XL
3230
37217
PA
3230
37219
PDA
3230
37213
PDA
3230
37201
LAL
3230
37202
LAH
3230
37205
XL
3230
37205
XS
3230
37203
XL
3230
37203
XS
3230
37204
XL
3230
37204
XS
3230
37206
XL
3230
37206
XS
3230
37207
XL
3230
37207
XS
3230
37208
XL
3230
37208
XS
3230
37209
XL
3230
37209
XS
3230
37210
TI
3230
37017
SI
MOVABLE ROLL
RIGHT POSITION
H, P2
P2
P2
P2
P2
H, P2
H, P2
A-B
HYDRAULIC SYST.
LEFT
HYDRAULIC SYST.
RIGHT
HYDRAULIC
PUMP A
HYDRAULIC
PUMP B
SOLENOID Y2
OIL FILTER
SOLENOID Y1
OIL FILTER LEFT
OIL FILTER RIGHT
OIL TANK
OIL TANK
SOLENOID Y4
BLOCK VALVE
SOLENOID Y8
SOLENOID Y11
SOLENOID Y3
SOLENOID Y9
BLOCK VALVE
HYDRAULIC
OIL TEMP.
3230
37282
II
3230
37282
XA
3230
37282
HS
FAULT
J/SP
3230
37281
II
3230
37281
XA FAULT
3230
37281
HS
J/SP
3230-AI-1119-G1A-1/2"-N 1/2"x1/4"
3"x2"
CR-016 ROLL CONTROLS
CR-016 FIXED ROLL
DRIVE CONTROLS
CR-016 MOVABLE ROLL
DRIVE CONTROLS
CR-016 HYDRAULIC
SYSTEM
P.O NO.:
VENDOR DWG NO.:
VENDOR:
P.O NO.:
VENDOR DWG NO.:
VENDOR:
P.O NO.:
VENDOR DWG NO.:
VENDOR:
P.O NO.:
VENDOR DWG NO.:
VENDOR:
CR-016 ROLL CONTROLS
CR-016 MOVABLE ROLL
DRIVE CONTROLS
CR-016 FIXED ROLL
DRIVE CONTROLS CR-016 HYDRAULIC SYSTEM
AFD - MOVABLE ROLL
AFD - FIXED ROLL
HOSE BY VENDOR
32 MM ID
HOSE BY VENDOR
32 MM ID
HOSE BY VENDOR
32 MM ID
HOSE BY VENDOR
32 MM ID
INSTRUMENT AIR
3106 3900-25J-022
CLOSED LOOP CWS
HEADER
3107 3200-25J-083
P2
3230
37225
XA COMMOM ALARM
3230
37025
XA COMMOM ALARM
3230
37125
XA COMMOM ALARM
3230
36925
XA COMMOM ALARM
CLOSED WATER CWR
HEADER
3108 3200-25J-084
CLOSED LOOP CWS
HEADER
4020 3200-25J-083
CLOSED LOOP CWS
HEADER
4022 3200-25J-083
CLOSED LOOP CWS
HEADER
4019 3200-25J-083
CLOSED LOOP CWS
HEADER
4018 3200-25J-083
CLOSED LOOP CWS
HEADER
4017 3200-25J-083
CLOSED LOOP CWR
HEADER
4023 3200-25J-084
CLOSED LOOP CWR
HEADER
4026 3200-25J-084
CLOSED LOOP CWR
HEADER
4025 3200-25J-084
CLOSED LOOP CWR
HEADER
4024 3200-25J-084
CLOSED LOOP CWR
HEADER
4028 3200-25J-084
3200-WF-1256-C1A-2"-N
3200-WF-1257-C1A-2"-N
3200-WF-1183-C1A-3"-N
3200-WF-1259-C1A-2"-N
3200-WF-1260-C1A-1-1/2"-N
3200-WF-1258-C1A-1-1/2"-N
3230-WF-1264-C1A-1-1/2"-N
3230-WF-1267-C1A-1-1/2"-N
3230-WF-1263-C1A-2"-N
3230-WF-1262-C1A-2"-N
3230-WF-1265-C1A-2"-N
3230-WF-1266-C1A-2"-N
D
4
F
B
A
3
2
1 5 6 8
E
7
C
REV.
APPROVED
CHK.
DES.
REV. DATE REVISION DESCRIPTION
CLIENT
LEAD ENGINEER
SCALE DRAWING NUMBER
CHECK DESIGN CHECK DRAWING
DESIGNED BY DRAWN BY
APPROVAL DATE
APPROVAL DATE
APPROVED
CHK.
DES.
REV. DATE REVISION DESCRIPTION REFERENCE DRAWING No.
1:100
0
1:200
5m
10m
0
5m
10m
15m
20m
1:500
10m
0
20m
30m
40m
50m
1:1000
0
100m
50m
1:20
0
0.5m
1m
1.5m
2m
0
1:25
0.5m
1m
1.5m
1:33
1/3
2.5m
2m
0
1m
2m
3m
0
1:50
1m
2m
3m
4m
5m
CAD FILE NAME: P:0CAD000SPEM**
MODEL UPDATED:
DWG. FILE UPDATED:
MANUAL CHANGES MADE: YES NO YES NO YES NO
PROJECT MANAGER
ENGINEERING MANAGER
AREA PROJECTENGINEER
REFERENCE DRAWINGS
SAFETY SHARE:
APPROVAL DATE
CONTRACT
NO.
SAFETY SHARE :
BA6CVA1.IGR
NOTICE: THIS DRAWING HAS NOT BEEN PUBLISHED AND IS THE SOLE
PROPERTY OF FLUOR AND IS LENT TO THE BORROWER FOR THEIR
CONFIDENTIAL USE ONLY, AND IN CONSIDERATION OF THE LOAN OF THIS
DRAWING, THE BORROWER PROMISES AND AGREES TO RETURN IT UPON
REQUEST AND AGREES THAT IT WILL NOT BE REPRODUCED, COPIED LENT
OR OTHERWISE DISPOSED OF DIRECTLY OR INDIRECTLY, NOR USED FOR
ANY OTHER PURPOSE OTHER THAN WHICH IT IS FURNISHED.
NONE
Apr 2011
240K-C2-
AG
KM
LT
ISSUED FOR CLIENT REVIEW
23-Dec-11
B
RP
ISSUED FOR COMBINED REVIEW
19-Jul-11
A
12/23/2011
K.MUNDY
A.GUNSON
T. OH
L.TAMELIN
12/21/2011
11:42:51
AM
WBS: 3230
B
PIPING AND INSTRUMENTATION DIAGRAM
TERTIARY CRUSHING
3200-25J-067
HPGR NO. 3 LUBE SYSTEM
3230
37311
XS
3230
37311
XL
3230
37312
XS
3230
37312
XL
3230
37313
LAH
3230
37314
PAH
3230
37315
XS
3230
37315
XL
3230
37316
SI
3230
37317
SI
3230
37318
VI
3230
37319
LAH
3230
37301
TI
3230
37302
TI
3230
37303
TI
3230
37304
TI
3230
37305
ZA
3230
37306
ZA
3230
37307
ZA
3230
37308
ZA
3230
37309
ZI
3230
37310
ZI
P2
P2
P2
H, P2
HH, P2
H, P2
H, P2
H, P2
GUIDE RAIL
LUBE
BEARING
LUBE
LUBE OIL
TANK
BEARING
LUBE
BEARING LUBE
SYSTEM MAIN
FIXED ROOL
MOVABLE ROLL
GEAR BOX
FEED
MOVABLE ROLL
LEFT
FIXED ROLL
LEFT
MOVABLE ROLL
RIGHT
FIXED ROLL
RIGHT
MOVABLE ROLL
LEFT
MOVABLE ROLL
LEFT
MOVABLE ROLL
LEFT
MOVABLE ROLL
RIGHT
MOVABLE ROLL
RIGHT
MOVABLE ROLL
RIGHT
T1
T1
3230
37514
PA
3230
37519
JDAH
3230
37517
SI
3230
37501
TI
P2
H, P2
3230
37502
TI H, P2
3230
37503
TI H, P2
3230
37504
TI H, P2
3230
37505
TI H, P2
3230
37506
TI H, P2
3230
37507
TI H, P2
3230
37508
ZAH
3230
37509
ZAH
3230
37510
XL
3230
37510
XS
3230
37513
PDAH
LUBE OIL
PUMP
LUBE OIL
PRESSURE
FIXED ROLL
MOTOR
FIXED/MOVABLE
ROLL POWER
MOTOR SPEED
OIL SUMP
MOTOR
BEARING
GEAR BOX
BEARING
MOTOR
BEARING
MOTOR
WINDING
MOTOR
WINDING
MOTOR
WINDING
MOTOR
COUPLING
MOTOR
COUPLING
GEAR LUBE
OIL
LUBE OIL
FILTER
3230
37581
II
3230
37581
XA
3230
37581
HS
FAULT
J/SP
3230
37582
II
3230
37582
XA
3230
37582
HS
FAULT
J/SP
T1
T1
3230
37414
PA
3230
37418
ZI
3230
37419
ZI
3230
37401
TI H, P2
3230
37402
TI H, P2
3230
37403
TI H, P2
3230
37404
TI H, P2
3230
37405
TI H, P2
3230
37406
TI H, P2
3230
37407
TI H, P2
3230
37408
ZAH
3230
37409
ZAH
3230
37410
XL
3230
37410
XS
3230
37413
PDAH
LUBE OIL
PUMP
LUBE OIL
PRESSURE
FIXED ROLL
MOTOR
MOVABLE ROLL
LEFT POSITION
MOTOR SPEED
OIL SUMP
MOTOR
BEARING
GEAR BOX
BEARING
MOTOR
BEARING
MOTOR
WINDING
MOTOR
WINDING
MOTOR
WINDING
MOTOR
COUPLING
MOTOR
COUPLING
GEAR LUBE
OIL
LUBE OIL
FILTER
3230
37481
II
3230
37481
XA
3230
37481
HS
FAULT
J/SP
3230
37482
II
3230
37482
XA
3230
37482
HS
FAULT
J/SP
T1
T1
3230
37614
PI
3230
37615
PI
3230
37616
XS
3230
37616
XL
3230
37618
XS
3230
37618
XL
3230
37617
PAH
3230
37619
PDAH
3230
37613
PDAH
3230
37601
LAL
3230
37602
LAH
3230
37605
XL
3230
37605
XS
3230
37603
XL
3230
37603
XS
3230
37604
XL
3230
37604
XS
3230
37606
XL
3230
37606
XS
3230
37607
XL
3230
37607
XS
3230
37608
XL
3230
37608
XS
3230
37609
XL
3230
37609
XS
3230
37610
TI
3230
37417
SI
MOVABLE ROLL
RIGHT POSITION
H, P2
P2
P2
P2
P2
H, P2
H, P2
A-B
HYDRAULIC SYST.
LEFT
HYDRAULIC SYST.
RIGHT
HYDRAULIC
PUMP A
HYDRAULIC
PUMP B
SOLENOID Y2
OIL FILTER
SOLENOID Y1
OIL FILTER LEFT
OIL FILTER RIGHT
OIL TANK
OIL TANK
SOLENOID Y4
BLOCK VALVE
SOLENOID Y8
SOLENOID Y11
SOLENOID Y3
SOLENOID Y9
BLOCK VALVE
HYDRAULIC
OIL TEMP.
3230
37682
II
3230
37682
XA
3230
37682
HS
FAULT
J/SP
3230
37681
II
3230
37681
XA FAULT
3230
37681
HS
J/SP
3230-AI-1120-G1A-1/2"-N 1/2"x1/4"
3"x2"
CR-017 ROLL CONTROLS
CR-017 FIXED ROLL
DRIVE CONTROLS
CR-017 MOVABLE ROLL
DRIVE CONTROLS
CR-017 HYDRAULIC
SYSTEM
P.O NO.:
VENDOR DWG NO.:
VENDOR:
P.O NO.:
VENDOR DWG NO.:
VENDOR:
P.O NO.:
VENDOR DWG NO.:
VENDOR:
P.O NO.:
VENDOR DWG NO.:
VENDOR:
CR-017 ROLL CONTROLS
CR-017 MOVABLE ROLL
DRIVE CONTROLS
CR-017 FIXED ROLL
DRIVE CONTROLS CR-017 HYDRAULIC SYSTEM
AFD - MOVABLE ROLL
AFD - FIXED ROLL
HOSE BY VENDOR
32 MM ID
HOSE BY VENDOR
32 MM ID
HOSE BY VENDOR
32 MM ID
HOSE BY VENDOR
32 MM ID
INSTRUMENT AIR
3109 3900-25J-022
CLOSED LOOP CWS
HEADER
3110 3200-25J-083
P2
3230
37625
XA
3230
37425
XA
COMMON ALARM
COMMON ALARM
3230
37525
XA COMMON ALARM
H, P2
3230
37325
XA COMMON ALARM
CLOSED LOOP CWR
HEADER
3111 3200-25J-084
CLOSED LOOP CWS
HEADER
4032 3200-25J-083
CLOSED LOOP CWS
HEADER
4031 3200-25J-083
CLOSED LOOP CWS
HEADER
4033 3200-25J-083
CLOSED LOOP CWS
HEADER
4036 3200-25J-083
CLOSED LOOP CWS
HEADER
4029 3200-25J-083
CLOSED LOOP CWR
HEADER
4035 3200-25J-084
CLOSED LOOP CWR
HEADER
4038 3200-25J-084
CLOSED LOOP CWR
HEADER
4034 3200-25J-084
CLOSED LOOP CWR
HEADER
4030 3200-25J-084
CLOSED LOOP CWR
HEADER
4037 3200-25J-084
3200-WF-1270-C1A-1-1/2"-N
3200-WF-1272-C1A-1-1/2"-N
3200-WF-1271-C1A-2"-N
3200-WF-1184-C1A-3"-N
3200-WF-1269-C1A-2"-N
3200-WF-1268-C1A-2"-N
3230-WF-1276-C1A-1-1/2"-N
3230-WF-1279-C1A-1-1/2"-N
3230-WF-1275-C1A-2"-N
3230-WF-1277-C1A-2"-N
3230-WF-1278-C1A-2"-N
3230-WF-1274-C1A-2"-N
D
4
F
B
A
3
2
1 5 6 8
E
7
C
REV.
APPROVED
CHK.
DES.
REV. DATE REVISION DESCRIPTION
CLIENT
LEAD ENGINEER
SCALE DRAWING NUMBER
CHECK DESIGN CHECK DRAWING
DESIGNED BY DRAWN BY
APPROVAL DATE
APPROVAL DATE
APPROVED
CHK.
DES.
REV. DATE REVISION DESCRIPTION REFERENCE DRAWING No.
1:100
0
1:200
5m
10m
0
5m
10m
15m
20m
1:500
10m
0
20m
30m
40m
50m
1:1000
0
100m
50m
1:20
0
0.5m
1m
1.5m
2m
0
1:25
0.5m
1m
1.5m
1:33
1/3
2.5m
2m
0
1m
2m
3m
0
1:50
1m
2m
3m
4m
5m
CAD FILE NAME: P:0CAD000SPEM**
MODEL UPDATED:
DWG. FILE UPDATED:
MANUAL CHANGES MADE: YES NO YES NO YES NO
PROJECT MANAGER
ENGINEERING MANAGER
AREA PROJECTENGINEER
REFERENCE DRAWINGS
SAFETY SHARE:
APPROVAL DATE
CONTRACT
NO.
SAFETY SHARE :
BA6CVA1.IGR
NOTICE: THIS DRAWING HAS NOT BEEN PUBLISHED AND IS THE SOLE
PROPERTY OF FLUOR AND IS LENT TO THE BORROWER FOR THEIR
CONFIDENTIAL USE ONLY, AND IN CONSIDERATION OF THE LOAN OF THIS
DRAWING, THE BORROWER PROMISES AND AGREES TO RETURN IT UPON
REQUEST AND AGREES THAT IT WILL NOT BE REPRODUCED, COPIED LENT
OR OTHERWISE DISPOSED OF DIRECTLY OR INDIRECTLY, NOR USED FOR
ANY OTHER PURPOSE OTHER THAN WHICH IT IS FURNISHED.
NONE
Apr 2011
240K-C2-
3230
37711
XS
3230
37711
XL
3230
37712
XS
3230
37712
XL
3230
37713
LAH
3230
37714
PAH
3230
37715
XS
3230
37715
XL
3230
37716
SI
3230
37717
SI
3230
37718
VI
3230
37719
LAHH
3230
37701
TI
3230
37702
TI
3230
37703
TI
3230
37704
TI
3230
37705
ZA
3230
37706
ZA
3230
37707
ZA
3230
37708
ZA
3230
37709
ZI
3230
37710
ZI
P2
P2
P2
H, P2
HH, P2
H, P2
H, P2
H, P2
GUIDE RAIL
LUBE
BEARING
LUBE
LUBE OIL
TANK
BEARING
LUBE
BEARING LUBE
SYSTEM MAIN
FIXED ROOL
MOVABLE ROLL
GEAR BOX
FEED
MOVABLE ROLL
LEFT
FIXED ROLL
LEFT
MOVABLE ROLL
RIGHT
FIXED ROLL
RIGHT
MOVABLE ROLL
LEFT
MOVABLE ROLL
LEFT
MOVABLE ROLL
LEFT
MOVABLE ROLL
RIGHT
MOVABLE ROLL
RIGHT
MOVABLE ROLL
RIGHT
T1
T1
3230
37914
PA
3230
37919
JDAH
3230
37917
SI
3230
37901
TI
P2
H, P2
3230
37902
TI H, P2
3230
37903
TI H, P2
3230
37904
TI H, P2
3230
37905
TI H, P2
3230
37906
TI H, P2
3230
37907
TI H, P2
3230
37908
ZAH
3230
37909
ZAH
3230
37910
XL
3230
37910
XS
3230
37913
PDAH
LUBE OIL
PUMP
LUBE OIL
PRESSURE
FIXED ROLL
MOTOR
FIXED/MOVABLE
ROLL POWER
MOTOR SPEED
OIL SUMP
MOTOR
BEARING
GEAR BOX
BEARING
MOTOR
BEARING
MOTOR
WINDING
MOTOR
WINDING
MOTOR
WINDING
MOTOR
COUPLING
MOTOR
COUPLING
GEAR LUBE
OIL
LUBE OIL
FILTER
3230
37981
II
3230
37981
XA
3230
37981
HS
J/SP
3230
37982
II
3230
37982
XA
3230
37982
HS
J/SP
T1
T1
3230
37814
PA
3230
37818
ZI
3230
37819
ZI
3230
37801
TI H, P2
3230
37802
TI H, P2
3230
37803
TI H, P2
3230
37804
TI H, P2
3230
37805
TI H, P2
3230
37806
TI H, P2
3230
37807
TI H, P2
3230
37808
ZAH
3230
37809
ZAH
3230
37810
XL
3230
37810
XS
3230
37813
PDAH
LUBE OIL
PUMP
LUBE OIL
PRESSURE
FIXED ROLL
MOTOR
MOVABLE ROLL
LEFT POSITION
MOTOR SPEED
OIL SUMP
MOTOR
BEARING
GEAR BOX
BEARING
MOTOR
BEARING
MOTOR
WINDING
MOTOR
WINDING
MOTOR
WINDING
MOTOR
COUPLING
MOTOR
COUPLING
GEAR LUBE
OIL
LUBE OIL
FILTER
3230
37881
II
3230
37881
XA
3230
37881
HS
J/SP
3230
37882
II
3230
37882
XA
3230
37882
HS
J/SP
T1
T1
3230
38014
PI
3230
38015
PI
3230
38016
XS
3230
38016
XL
3230
38018
XS
3230
38018
XL
3230
38017
PAH
3230
38019
PDAH
3230
38013
PDAH
3230
38001
LAL
3230
38002
LAH
3230
06865
XL
3230
06865
XS
3230
38003
XL
3230
38003
XS
3230
38004
XL
3230
38004
XS
3230
06866
XL
3230
06866
XS
3230
06867
XL
3230
06867
XS
3230
06868
XL
3230
06868
XS
3230
06869
XL
3230
06869
XS
3230
38010
TI
3230
37817
SI
MOVABLE ROLL
RIGHT POSITION
H, P2
P2
P2
P2
P2
H, P2
H, P2
P2
A-B
HYDRAULIC SYST.
LEFT
HYDRAULIC SYST.
RIGHT
HYDRAULIC
PUMP A
HYDRAULIC
PUMP B
SOLENOID Y2
OIL FILTER
SOLENOID Y1
OIL FILTER LEFT
OIL FILTER RIGHT
OIL TANK
OIL TANK
SOLENOID Y4
BLOCK VALVE
SOLENOID Y8
SOLENOID Y11
SOLENOID Y3
SOLENOID Y9
BLOCK VALVE
HYDRAULIC
OIL TEMP.
3230
38082
II
3230
38082
XA
3230
38082
HS
J/SP
3230
38081
II
3230
38081
XA
3230
38081
HS
J/SP
3230-AI-1121-G1A-1/2"-N 1/2"x1/4"
3"x2"
3230-WF-1286-C1A-2"-N
CR-018 ROLL CONTROLS
CR-018 FIXED ROLL
DRIVE CONTROLS
CR-018 MOVABLE ROLL
DRIVE CONTROLS
CR-018 HYDRAULIC
SYSTEM
P.O NO.:
VENDOR DWG NO.:
VENDOR:
P.O NO.:
VENDOR DWG NO.:
VENDOR:
P.O NO.:
VENDOR DWG NO.:
VENDOR:
P.O NO.:
VENDOR DWG NO.:
VENDOR:
CR-018 ROLL CONTROLS
CR-018 MOVABLE ROLL
DRIVE CONTROLS
CR-018 FIXED ROLL
DRIVE CONTROLS CR-018 HYDRAULIC SYSTEM
AFD - MOVABLE ROLL
AFD - FIXED ROLL
HOSE BY VENDOR
32 MM ID
HOSE BY VENDOR
32 MM ID
HOSE BY VENDOR
32 MM ID
HOSE BY VENDOR
32 MM ID
INSTRUMENT AIR
3112 3900-25J-022
CLOSED LOOP CWS
HEADER
3113 3200-25J-083
CLOSED LOOP CWR
HEADER
3114 3200-25J-084
AG
KM
LT
ISSUED FOR CLIENT REVIEW
23-Dec-11
B
RP
ISSUED FOR COMBINED REVIEW
19-Jul-11
A
12/23/2011
K.MUNDY
A.GUNSON
T. OH
L.TAMELIN
12/23/2011
2:54:29
PM
WBS: 3230
B
PIPING AND INSTRUMENTATION DIAGRAM
TERTIARY CRUSHING
3200-25J-068
HPGR NO. 4 LUBE SYSTEM
FAULT
FAULT FAULT
FAULT
FAULT
FAULT
3230
38025
XA COMMON ALARM
3230
37825
XA COMMON ALARM
3230
37925
XA COMMON ALARM
3230
37925
XA COMMON ALARM
H, P2
CLOSED LOOP CWS
HEADER
4046 3200-25J-083
CLOSED LOOP CWS
HEADER
4041 3200-25J-083
CLOSED LOOP CWS
HEADER
4043 3200-25J-083
CLOSED LOOP CWS
HEADER
4042 3200-25J-083
CLOSED LOOP CWS
HEADER
4047 3200-25J-083
CLOSED LOOP CWR
HEADER
4040 3200-25J-084
CLOSED LOOP CWR
HEADER
4039 3200-25J-084
CLOSED LOOP CWR
HEADER
4045 3200-25J-084
CLOSED LOOP CWR
HEADER
4044 3200-25J-084
CLOSED LOOP CWR
HEADER
4048 3200-25J-084
3200-WF-1280-C1A-2"-N
3200-WF-1281-C1A-2"-N
3200-WF-1185-C1A-3"-N
3200-WF-1283-C1A-2"-N
3200-WF-1284-C1A-1-1/2"-N
3200-WF-1282-C1A-1-1/2"-N
3230-WF-1288-C1A-1-1/2"-N
3230-WF-1291-C1A-1-1/2"-N
3230-WF-1287-C1A-2"-N
3230-WF-1286-C1A-2"-N
3230-WF-1289-C1A-2"-N
3230-WF-1290-C1A-2"-N
D
4
F
B
A
3
2
1 5 6 8
E
7
C
REV.
APPROVED
CHK.
DES.
REV. DATE REVISION DESCRIPTION
CLIENT
LEAD ENGINEER
SCALE DRAWING NUMBER
CHECK DESIGN CHECK DRAWING
DESIGNED BY DRAWN BY
APPROVAL DATE
APPROVAL DATE
APPROVED
CHK.
DES.
REV. DATE REVISION DESCRIPTION REFERENCE DRAWING No.
1:100
0
1:200
5m
10m
0
5m
10m
15m
20m
1:500
10m
0
20m
30m
40m
50m
1:1000
0
100m
50m
1:20
0
0.5m
1m
1.5m
2m
0
1:25
0.5m
1m
1.5m
1:33
1/3
2.5m
2m
0
1m
2m
3m
0
1:50
1m
2m
3m
4m
5m
CAD FILE NAME: P:0CAD000SPEM**
MODEL UPDATED:
DWG. FILE UPDATED:
MANUAL CHANGES MADE: YES NO YES NO YES NO
PROJECT MANAGER
ENGINEERING MANAGER
AREA PROJECTENGINEER
REFERENCE DRAWINGS
SAFETY SHARE:
APPROVAL DATE
CONTRACT
NO.
SAFETY SHARE :
BA6CVA1.IGR
NOTICE: THIS DRAWING HAS NOT BEEN PUBLISHED AND IS THE SOLE
PROPERTY OF FLUOR AND IS LENT TO THE BORROWER FOR THEIR
CONFIDENTIAL USE ONLY, AND IN CONSIDERATION OF THE LOAN OF THIS
DRAWING, THE BORROWER PROMISES AND AGREES TO RETURN IT UPON
REQUEST AND AGREES THAT IT WILL NOT BE REPRODUCED, COPIED LENT
OR OTHERWISE DISPOSED OF DIRECTLY OR INDIRECTLY, NOR USED FOR
ANY OTHER PURPOSE OTHER THAN WHICH IT IS FURNISHED.
NONE
Apr 2011
240K-C2-
3230
38111
XS
3230
38111
XL
3230
38112
XS
3230
38112
XL
3230
38113
LAH
3230
38114
PAH
3230
38115
XS
3230
38115
XL
3230
38116
SI
3230
38117
SI
3230
38118
VI
3230
38119
LAHH
3230
38101
TI
3230
38102
TI
3230
38103
TI
3230
38104
TI
3230
38105
ZA
3230
38106
ZA
3230
38107
ZA
3230
38108
ZA
3230
38109
ZI
3230
38110
ZI
P2
P2
P2
H, P2
HH, P2
H, P2
H, P2
H, P2
GUIDE RAIL
LUBE
BEARING
LUBE
LUBE OIL
TANK
BEARING
LUBE
BEARING LUBE
SYSTEM MAIN
FIXED ROOL
MOVABLE ROLL
GEAR BOX
FEED
MOVABLE ROLL
LEFT
FIXED ROLL
LEFT
MOVABLE ROLL
RIGHT
FIXED ROLL
RIGHT
MOVABLE ROLL
LEFT
MOVABLE ROLL
LEFT
MOVABLE ROLL
LEFT
MOVABLE ROLL
RIGHT
MOVABLE ROLL
RIGHT
MOVABLE ROLL
RIGHT
T1
T1
3230
38314
PA
3230
38319
JDAH
3230
38317
SI
3230
38301
TI
P2
H, P2
3230
38302
TI H, P2
3230
38303
TI H, P2
3230
38304
TI H, P2
3230
38305
TI H, P2
3230
38306
TI H, P2
3230
38307
TI H, P2
3230
38308
ZAH
3230
38309
ZAH
3230
38310
XL
3230
38310
XS
3230
38313
PDA
LUBE OIL
PUMP
LUBE OIL
PRESSURE
FIXED ROLL
MOTOR
FIXED/MOVABLE
ROLL POWER
MOTOR SPEED
OIL SUMP
MOTOR
BEARING
GEAR BOX
BEARING
MOTOR
BEARING
MOTOR
WINDING
MOTOR
WINDING
MOTOR
WINDING
MOTOR
COUPLING
MOTOR
COUPLING
GEAR LUBE
OIL
LUBE OIL
FILTER
3230
38381
II
3230
38381
XA
3230
38381
HS
J/SP
3230
38382
II
3230
38382
XA
3230
38382
HS
J/SP
T1
T1
3230
38214
PA
3230
38218
ZI
3230
38219
ZI
3230
38201
TI H, P2
3230
38202
TI H, P2
3230
38203
TI H, P2
3230
38204
TI H, P2
3230
38205
TI H, P2
3230
38206
TI H, P2
3230
38207
TI H, P2
3230
38208
ZAH
3230
38209
ZAH
3230
38210
XL
3230
38210
XS
3230
38213
PDA
LUBE OIL
PUMP
LUBE OIL
PRESSURE
FIXED ROLL
MOTOR
MOVABLE ROLL
LEFT POSITION
MOTOR SPEED
OIL SUMP
MOTOR
BEARING
GEAR BOX
BEARING
MOTOR
BEARING
MOTOR
WINDING
MOTOR
WINDING
MOTOR
WINDING
MOTOR
COUPLING
MOTOR
COUPLING
GEAR LUBE
OIL
LUBE OIL
FILTER
3230
38281
II
3230
38281
XA
3230
38281
HS
J/SP
3230
38282
II
3230
38282
XA
3230
38282
HS
J/SP
T1
T1
3230
38414
PI
3230
38415
PI
3230
38416
XS
3230
38416
XL
3230
38418
XS
3230
38418
XL
3230
38417
PAH
3230
38419
PDAH
3230
38413
PDAH
3230
38401
LAL
3230
38402
LAH
3230
38405
XL
3230
38405
XS
3230
38403
XL
3230
38403
XS
3230
38404
XL
3230
38404
XS
3230
38406
XL
3230
38406
XS
3230
38407
XL
3230
38407
XS
3230
38408
XL
3230
38408
XS
3230
38409
XL
3230
38409
XS
3230
38410
TI
3230
38217
SI
MOVABLE ROLL
RIGHT POSITION
H, P2
P2
P2
P2
P2
H, P2
H, P2
A-B
HYDRAULIC SYST.
LEFT
HYDRAULIC SYST.
RIGHT
HYDRAULIC
PUMP A
HYDRAULIC
PUMP B
SOLENOID Y2
OIL FILTER
SOLENOID Y1
OIL FILTER LEFT
OIL FILTER RIGHT
OIL TANK
OIL TANK
SOLENOID Y4
BLOCK VALVE
SOLENOID Y8
SOLENOID Y11
SOLENOID Y3
SOLENOID Y9
BLOCK VALVE
HYDRAULIC
OIL TEMP.
3230
38482
II
3230
38482
XA
3230
38482
HS
J/SP
3230
38481
II
3230
38481
XA
3230
38481
HS
J/SP
3230-AI-1122-G1A-1/2"-N 1/2"x1/4"
3"x2"
CR-025 ROLL CONTROLS
CR-025 FIXED ROLL
DRIVE CONTROLS
CR-025 MOVABLE ROLL
DRIVE CONTROLS
CR-025 HYDRAULIC
SYSTEM
P.O NO.:
VENDOR DWG NO.:
VENDOR:
P.O NO.:
VENDOR DWG NO.:
VENDOR:
P.O NO.:
VENDOR DWG NO.:
VENDOR:
P.O NO.:
VENDOR DWG NO.:
VENDOR:
CR-025 ROLL CONTROLS
CR-025 MOVABLE ROLL
DRIVE CONTROLS
CR-025 FIXED ROLL
DRIVE CONTROLS CR-025 HYDRAULIC SYSTEM
AFD - MOVABLE ROLL
AFD - FIXED ROLL
HOSE BY VENDOR
32 MM ID
HOSE BY VENDOR
32 MM ID
HOSE BY VENDOR
32 MM ID
HOSE BY VENDOR
32 MM ID
INSTRUMENT AIR
3116 3900-25J-022
CLOSED LOOP CWS
HEADER
3117 3200-25J-083
CLOSED LOOP CWR
HEADER
3118 3200-25J-084
AG
KM
LT
ISSUED FOR CLIENT REVIEW
23-Dec-11
B
RP
ISSUED FOR COMBINED REVIEW
19-Jul-11
A
12/23/2011
K.MUNDY
A.GUNSON
T. OH
L.TAMELIN
12/23/2011
2:55:13
PM
WBS: 3230
B
PIPING AND INSTRUMENTATION DIAGRAM
TERTIARY CRUSHING
3200-25J-069
HPGR NO. 5 LUBE SYSTEM
FAULT
FAULT
FAULT
FAULT
FAULT
FAULT
P2
3230
38425
XA COMMON ALARM
3230
38225
XA COMMON ALARM
3230
38325
XA COMMON ALARM
3230
38125
XA COMMON ALARM
H, P2
CLOSED LOOP CWS
HEADER
4055 3200-25J-083
CLOSED LOOP CWS
HEADER
4049 3200-25J-083
CLOSED LOOP CWS
HEADER
4051 3200-25J-083
CLOSED LOOP CWS
HEADER
4050 3200-25J-083
CLOSED LOOP CWS
HEADER
4056 3200-25J-083
CLOSED LOOP CWR
HEADER
4054 3200-25J-084
CLOSED LOOP CWR
HEADER
4058 3200-25J-084
CLOSED LOOP CWR
HEADER
4053 3200-25J-084
CLOSED LOOP CWR
HEADER
4057 3200-25J-084
CLOSED LOOP CWR
HEADER
4052 3200-25J-084
3200-WF-1292-C1A-2"-N
3200-WF-1186-C1A-3"-N
3200-WF-1293-C1A-2"-N
3200-WF-1295-C1A-2"-N
3200-WF-1296-C1A-1-1/2"-N
3200-WF-1294-C1A-1-1/2"-N
3230-WF-1302-C1A-2"-N
3230-WF-1301-C1A-2"-N
3230-WF-1298-C1A-2"-N
3230-WF-1299-C1A-2"-N
3230-WF-1303-C1A-1-1/2"-N
3230-WF-1300-C1A-1-1/2"-N
D
4
F
B
A
3
2
1 5 6 8
E
7
C
REV.
APPROVED
CHK.
DES.
REV. DATE REVISION DESCRIPTION
CLIENT
LEAD ENGINEER
SCALE DRAWING NUMBER
CHECK DESIGN CHECK DRAWING
DESIGNED BY DRAWN BY
APPROVAL DATE
APPROVAL DATE
APPROVED
CHK.
DES.
REV. DATE REVISION DESCRIPTION REFERENCE DRAWING No.
1:100
0
1:200
5m
10m
0
5m
10m
15m
20m
1:500
10m
0
20m
30m
40m
50m
1:1000
0
100m
50m
1:20
0
0.5m
1m
1.5m
2m
0
1:25
0.5m
1m
1.5m
1:33
1/3
2.5m
2m
0
1m
2m
3m
0
1:50
1m
2m
3m
4m
5m
CAD FILE NAME: P:0CAD000SPEM**
MODEL UPDATED:
DWG. FILE UPDATED:
MANUAL CHANGES MADE: YES NO YES NO YES NO
PROJECT MANAGER
ENGINEERING MANAGER
AREA PROJECTENGINEER
REFERENCE DRAWINGS
SAFETY SHARE:
APPROVAL DATE
CONTRACT
NO.
SAFETY SHARE :
BA6CVA1.IGR
NOTICE: THIS DRAWING HAS NOT BEEN PUBLISHED AND IS THE SOLE
PROPERTY OF FLUOR AND IS LENT TO THE BORROWER FOR THEIR
CONFIDENTIAL USE ONLY, AND IN CONSIDERATION OF THE LOAN OF THIS
DRAWING, THE BORROWER PROMISES AND AGREES TO RETURN IT UPON
REQUEST AND AGREES THAT IT WILL NOT BE REPRODUCED, COPIED LENT
OR OTHERWISE DISPOSED OF DIRECTLY OR INDIRECTLY, NOR USED FOR
ANY OTHER PURPOSE OTHER THAN WHICH IT IS FURNISHED.
NONE
Apr 2011
240K-C2-
3230
38511
XS
3230
38511
XL
3230
38512
XS
3230
38512
XL
3230
38513
LAH
3230
38514
PAH
3230
38515
XS
3230
38515
XL
3230
38516
SI
3230
38517
SI
3230
38518
VI
3230
38519
LAHH
3230
38501
TI
3230
38502
TI
3230
38503
TI
3230
38504
TI
3230
38505
ZA
3230
38506
ZA
3230
38507
ZA
3230
38508
ZA
3230
38509
ZI
3230
38510
ZI
P2
P2
P2
H, P2
HH, P2
H, P2
H, P2
H, P2
GUIDE RAIL
LUBE
BEARING
LUBE
LUBE OIL
TANK
BEARING
LUBE
BEARING LUBE
SYSTEM MAIN
FIXED ROOL
MOVABLE ROLL
GEAR BOX
FEED
MOVABLE ROLL
LEFT
FIXED ROLL
LEFT
MOVABLE ROLL
RIGHT
FIXED ROLL
RIGHT
MOVABLE ROLL
LEFT
MOVABLE ROLL
LEFT
MOVABLE ROLL
LEFT
MOVABLE ROLL
RIGHT
MOVABLE ROLL
RIGHT
MOVABLE ROLL
RIGHT
T1
T1
3230
38714
PA
3230
38719
JDAH
3230
38717
SI
3230
38701
TI
H, P2
H, P2
3230
38702
TI H, P2
3230
38703
TI H, P2
3230
38704
TI H, P2
3230
38705
TI H, P2
3230
38706
TI H, P2
3230
38707
TI H, P2
3230
38708
ZAH
3230
38709
ZAH
3230
38710
XL
3230
38710
XS
3230
38713
PDAH
LUBE OIL
PUMP
LUBE OIL
PRESSURE
FIXED ROLL
MOTOR
FIXED/MOVABLE
ROLL POWER
MOTOR SPEED
OIL SUMP
MOTOR
BEARING
GEAR BOX
BEARING
MOTOR
BEARING
MOTOR
WINDING
MOTOR
WINDING
MOTOR
WINDING
MOTOR
COUPLING
MOTOR
COUPLING
GEAR LUBE
OIL
LUBE OIL
FILTER
3230
38781
II
3230
38781
XA
3230
38781
HS
J/SP
3230
38782
II
3230
38782
XA
3230
38782
HS
J/SP
T1
T1
3230
38614
PA
3230
38618
ZI
3230
38619
ZI
3230
38601
TI H, P2
3230
38602
TI H, P2
3230
38603
TI H, P2
3230
38604
TI H, P2
3230
38605
TI H, P2
3230
38606
TI H, P2
3230
38607
TI H, P2
3230
38608
ZAH
3230
38609
ZAH
3230
38610
XL
3230
38610
XS
3230
38613
PDAH
LUBE OIL
PUMP
LUBE OIL
PRESSURE
FIXED ROLL
MOTOR
MOVABLE ROLL
LEFT POSITION
MOTOR SPEED
OIL SUMP
MOTOR
BEARING
GEAR BOX
BEARING
MOTOR
BEARING
MOTOR
WINDING
MOTOR
WINDING
MOTOR
WINDING
MOTOR
COUPLING
MOTOR
COUPLING
GEAR LUBE
OIL
LUBE OIL
FILTER
3230
38681
II
3230
38681
XA
3230
38681
HS
J/SP
3230
38682
II
3230
38682
XA
3230
38682
HS
J/SP
T1
T1
3230
38814
PI
3230
38815
PI
3230
38816
XS
3230
38816
XL
3230
38818
XS
3230
38818
XL
3230
38817
PAH
3230
38819
PDAH
3230
38813
PDAH
3230
38801
LAL
3230
38802
LAH
3230
38805
XL
3230
38805
XS
3230
38803
XL
3230
38803
XS
3230
38804
XL
3230
38804
XS
3230
38806
XL
3230
38806
XS
3230
38807
XL
3230
38807
XS
3230
38808
XL
3230
38808
XS
3230
38809
XL
3230
38809
XS
3230
38810
TI
3230
38617
SI
MOVABLE ROLL
RIGHT POSITION
H, P2
P2
P2
P2
P2
H, P2
H, P2
A-B
HYDRAULIC SYST.
LEFT
HYDRAULIC SYST.
RIGHT
HYDRAULIC
PUMP A
HYDRAULIC
PUMP B
SOLENOID Y2
OIL FILTER
SOLENOID Y1
OIL FILTER LEFT
OIL FILTER RIGHT
OIL TANK
OIL TANK
SOLENOID Y4
BLOCK VALVE
SOLENOID Y8
SOLENOID Y11
SOLENOID Y3
SOLENOID Y9
BLOCK VALVE
HYDRAULIC
OIL TEMP.
3230
38882
II
3230
38882
XA
3230
38882
HS
J/SP
3230
38881
II
3230
38881
XA
3230
38881
HS
J/SP
3230-AI-1123-G1A-1/2"-N 1/2"x1/4"
3"x2"
CR-026 ROLL CONTROLS
CR-026 FIXED ROLL
DRIVE CONTROLS
CR-026 MOVABLE ROLL
DRIVE CONTROLS
CR-026 HYDRAULIC
SYSTEM
P.O NO.:
VENDOR DWG NO.:
VENDOR:
P.O NO.:
VENDOR DWG NO.:
VENDOR:
P.O NO.:
VENDOR DWG NO.:
VENDOR:
P.O NO.:
VENDOR DWG NO.:
VENDOR:
CR-026 ROLL CONTROLS
CR-026 MOVABLE ROLL
DRIVE CONTROLS
CR-026 FIXED ROLL
DRIVE CONTROLS CR-026 HYDRAULIC SYSTEM
AFD - MOVABLE ROLL
AFD - FIXED ROLL
HOSE BY VENDOR
32 MM ID
HOSE BY VENDOR
32 MM ID
HOSE BY VENDOR
32 MM ID
HOSE BY VENDOR
32 MM ID
INSTRUMENT AIR
3119 3900-25J-022
CLOSED LOOP CWS
HEADER
3120 3200-25J-083
CLOSED LOOP CWR
HEADER
3121 3200-25J-084
AG
KM
LT
ISSUED FOR CLIENT REVIEW
23-Dec-11
B
RP
ISSUED FOR COMBINED REVIEW
19-Jul-11
A
12/23/2011
K.MUNDY
A.GUNSON
T. OH
L.TAMELIN
12/23/2011
2:55:55
PM
WBS: 3230
B
PIPING AND INSTRUMENTATION DIAGRAM
TERTIARY CRUSHING
3200-25J-070
HPRG NO. 6 LUBE SYSTEM
FAULT
FAULT FAULT
FAULT
FAULT
FAULT
3230
38825
XA COMMON ALARM
P2
3230
38625
XA COMMON ALARM
3230
38725
XA COMMON ALARM
3230
38525
XA COMMON ALARM
H, P2
CLOSED LOOP CWS
HEADER
4062 3200-25J-083
CLOSED LOOP CWS
HEADER
4061 3200-25J-083
CLOSED LOOP CWS
HEADER
4066 3200-25J-083
CLOSED LOOP CWS
HEADER
4063 3200-25J-083
CLOSED LOOP CWS
HEADER
4068 3200-25J-083
CLOSED LOOP CWR
HEADER
4065 3200-25J-084
CLOSED LOOP CWR
HEADER
4060 3200-25J-084
CLOSED LOOP CWR
HEADER
4067 3200-25J-084
CLOSED LOOP CWR
HEADER
4064 3200-25J-084
CLOSED LOOP CWR
HEADER
4059 3200-25J-084
3200-WF-1306-C1A-1-1/2"-N
3200-WF-1308-C1A-1-1/2"-N
3200-WF-1307-C1A-2"-N
3200-WF-1187-C1A-3"-N
3200-WF-1305-C1A-2"-N
3200-WF-1304-C1A-2"-N
3230-WF-1312-C1A-1-1/2"-N
3230-WF-1315-C1A-1-1/2"-N
3230-WF-1311-C1A-2"-N
3230-WF-1310-C1A-2"-N
3230-WF-1313-C1A-2"-N
3230-WF-1314-C1A-2"-N
D
4
F
B
A
3
2
1 5 6 8
E
7
C
REV.
APPROVED
CHK.
DES.
REV. DATE REVISION DESCRIPTION
CLIENT
LEAD ENGINEER
SCALE DRAWING NUMBER
CHECK DESIGN CHECK DRAWING
DESIGNED BY DRAWN BY
APPROVAL DATE
APPROVAL DATE
APPROVED
CHK.
DES.
REV. DATE REVISION DESCRIPTION REFERENCE DRAWING No.
1:100
0
1:200
5m
10m
0
5m
10m
15m
20m
1:500
10m
0
20m
30m
40m
50m
1:1000
0
100m
50m
1:20
0
0.5m
1m
1.5m
2m
0
1:25
0.5m
1m
1.5m
1:33
1/3
2.5m
2m
0
1m
2m
3m
0
1:50
1m
2m
3m
4m
5m
CAD FILE NAME: P:0CAD000SPEM**
MODEL UPDATED:
DWG. FILE UPDATED:
MANUAL CHANGES MADE: YES NO YES NO YES NO
PROJECT MANAGER
ENGINEERING MANAGER
AREA PROJECTENGINEER
REFERENCE DRAWINGS
SAFETY SHARE:
APPROVAL DATE
CONTRACT
NO.
SAFETY SHARE :
BA6CVA1.IGR
NOTICE: THIS DRAWING HAS NOT BEEN PUBLISHED AND IS THE SOLE
PROPERTY OF FLUOR AND IS LENT TO THE BORROWER FOR THEIR
CONFIDENTIAL USE ONLY, AND IN CONSIDERATION OF THE LOAN OF THIS
DRAWING, THE BORROWER PROMISES AND AGREES TO RETURN IT UPON
REQUEST AND AGREES THAT IT WILL NOT BE REPRODUCED, COPIED LENT
OR OTHERWISE DISPOSED OF DIRECTLY OR INDIRECTLY, NOR USED FOR
ANY OTHER PURPOSE OTHER THAN WHICH IT IS FURNISHED.
NONE
Apr 2011
240K-C2-
3230
38911
XS
3230
38911
XL
3230
38912
XS
3230
38912
XL
3230
38913
LAH
3230
38914
PAH
3230
38915
XS
3230
38915
XL
3230
38916
SI
3230
38917
SI
3230
38918
VI
3230
38919
LAHH
3230
38901
TI
3230
38902
TI
3230
38903
TI
3230
38904
TI
3230
38905
ZA
3230
38906
ZA
3230
38907
ZA
3230
38908
ZA
3230
38909
ZI
3230
38910
ZI
P2
P2
P2
H, P2
HH, P2
H, P2
H, P2
H, P2
GUIDE RAIL
LUBE
BEARING
LUBE
LUBE OIL
TANK
BEARING
LUBE
BEARING LUBE
SYSTEM MAIN
FIXED ROOL
MOVABLE ROLL
GEAR BOX
FEED
MOVABLE ROLL
LEFT
FIXED ROLL
LEFT
MOVABLE ROLL
RIGHT
FIXED ROLL
RIGHT
MOVABLE ROLL
LEFT
MOVABLE ROLL
LEFT
MOVABLE ROLL
LEFT
MOVABLE ROLL
RIGHT
MOVABLE ROLL
RIGHT
MOVABLE ROLL
RIGHT
T1
T1
3230
39114
PA
3230
39119
JDAH
3230
39117
SI
3230
39101
TI
P2
H, P2
3230
39102
TI H, P2
3230
07123
TI H, P2
3230
39104
TI H, P2
3230
39105
TI H, P2
3230
39106
TI H, P2
3230
39107
TI H, P2
3230
39108
ZAH
3230
39109
ZAH
3230
39110
XL
3230
39110
XS
3230
39113
PDAH
LUBE OIL
PUMP
LUBE OIL
PRESSURE
FIXED ROLL
MOTOR
FIXED/MOVABLE
ROLL POWER
MOTOR SPEED
OIL SUMP
MOTOR
BEARING
GEAR BOX
BEARING
MOTOR
BEARING
MOTOR
WINDING
MOTOR
WINDING
MOTOR
WINDING
MOTOR
COUPLING
MOTOR
COUPLING
GEAR LUBE
OIL
LUBE OIL
FILTER
3230
39181
II
3230
39181
XA
3230
39181
HS
J/SP
3230
39182
II
3230
39182
XA
3230
39182
HS
J/SP
T1
T1
3230
39014
PA
3230
39018
ZI
3230
39019
ZI
3230
39001
TI H, P2
3230
39002
TI H, P2
3230
39003
TI H, P2
3230
39004
TI H, P2
3230
39005
TI H, P2
3230
39006
TI H, P2
3230
39007
TI H, P2
3230
39008
ZAH
3230
39009
ZAH
3230
39010
XL
3230
39010
XS
3230
39013
PDAH
LUBE OIL
PUMP
LUBE OIL
PRESSURE
FIXED ROLL
MOTOR
MOVABLE ROLL
LEFT POSITION
MOTOR SPEED
OIL SUMP
MOTOR
BEARING
GEAR BOX
BEARING
MOTOR
BEARING
MOTOR
WINDING
MOTOR
WINDING
MOTOR
WINDING
MOTOR
COUPLING
MOTOR
COUPLING
GEAR LUBE
OIL
LUBE OIL
FILTER
3230
39081
II
3230
39081
XA
3230
39081
HS
J/SP
3230
39082
II
3230
39082
XA
3230
39082
HS
J/SP
T1
T1
3230
39214
PI
3230
39215
PI
3230
39216
XS
3230
39216
XL
3230
39218
XS
3230
39218
XL
3230
39217
PAH
3230
39219
PDAH
3230
39213
PDAH
3230
39201
LAL
3230
39202
LAH
3230
39205
XL
3230
39205
XS
3230
39203
XL
3230
39203
XS
3230
39204
XL
3230
39204
XS
3230
39206
XL
3230
39206
XS
3230
39207
XL
3230
39207
XS
3230
39208
XL
3230
39208
XS
3230
39007
XL
3230
39007
XS
3230
39210
TI
3230
07157
SI
MOVABLE ROLL
RIGHT POSITION
H, P2
P2
P2
P2
P2
H, P2
H, P2
A-B
HYDRAULIC SYST.
LEFT
HYDRAULIC SYST.
RIGHT
HYDRAULIC
PUMP A
HYDRAULIC
PUMP B
SOLENOID Y2
OIL FILTER
SOLENOID Y1
OIL FILTER LEFT
OIL FILTER RIGHT
OIL TANK
OIL TANK
SOLENOID Y4
BLOCK VALVE
SOLENOID Y8
SOLENOID Y11
SOLENOID Y3
SOLENOID Y9
BLOCK VALVE
HYDRAULIC
OIL TEMP.
3230
39282
II
3230
39282
XA
3230
39282
HS
J/SP
3230
39281
II
3230
39281
XA
3230
39281
HS
J/SP
3230-AI-1124-G1A-1/2"-N 1/2"x1/4"
3"x2"
3200-WF-1320-C1A-1-1/2"-N
3230-WF-1319-C1A-2"-N
3230-WF-1322-C1A-2"-N
CR-027 ROLL CONTROLS
CR-027 FIXED ROLL
DRIVE CONTROLS
CR-027 MOVABLE ROLL
DRIVE CONTROLS
CR-027 HYDRAULIC
SYSTEM
P.O NO.:
VENDOR DWG NO.:
VENDOR:
P.O NO.:
VENDOR DWG NO.:
VENDOR:
P.O NO.:
VENDOR DWG NO.:
VENDOR:
P.O NO.:
VENDOR DWG NO.:
VENDOR:
CR-027 ROLL CONTROLS
CR-027 MOVABLE ROLL
DRIVE CONTROLS
CR-027 FIXED ROLL
DRIVE CONTROLS CR-027 HYDRAULIC SYSTEM
AFD - MOVABLE ROLL
AFD - FIXED ROLL
HOSE BY VENDOR
32 MM ID
HOSE BY VENDOR
32 MM ID
HOSE BY VENDOR
32 MM ID
HOSE BY VENDOR
32 MM ID
INSTRUMENT AIR
3122 3900-25J-022
CLOSED LOOP CWS
HEADER
3123 3200-25J-083
CLOSED LOOP CWR
HEADER
3124 3200-25J-084
AG
KM
LT
ISSUED FOR CLIENT REVIEW
23-Dec-11
B
RP
ISSUED FOR COMBINED REVIEW
19-Jul-11
A
12/23/2011
K.MUNDY
A.GUNSON
T. OH
L.TAMELIN
12/23/2011
2:56:36
PM
WBS: 3230
B
PIPING AND INSTRUMENTATION DIAGRAM
TERTIARY CRUSHING
3200-25J-071
HPGR NO. 7 LUBE SYSTEM
FAULT
FAULT
FAULT
FAULT
FAULT
FAULT
P2
3230
39225
XA COMMON ALARM
3230
39025
XA COMMON ALARM
3230
39125
XA COMMON ALARM
3230
38925
XA COMMON ALARM
H, P2
CLOSED LOOP CWS
HEADER
4069 3200-25J-083
CLOSED LOOP CWS
HEADER
4073 3200-25J-083
CLOSED LOOP CWS
HEADER
4070 3200-25J-083
CLOSED LOOP CWS
HEADER
4076 3200-25J-083
CLOSED LOOP CWS
HEADER
4075 3200-25J-083
CLOSED LOOP CWR
HEADER
4074 3200-25J-084
CLOSED LOOP CWR
HEADER
4072 3200-25J-084
CLOSED LOOP CWR
HEADER
4078 3200-25J-084
CLOSED LOOP CWR
HEADER
4071 3200-25J-084
CLOSED LOOP CWR
HEADER
4077 3200-25J-084
3200-WF-1316-C1A-2"-N
3200-WF-1317-C1A-2"-N
3200-WF-1188-C1A-3"-N
3200-WF-1320-C1A-1-1/2"-N
3230-WF-1319-C1A-2"-N
3200-WF-1318-C1A-1-1/2"-N
3230-WF-1326-C1A-2"-N
3230-WF-1325-C1A-2"-N
3230-WF-1323-C1A-2"-N
3230-WF-1322-C1A-2"-N
3230-WF-1327-C1A-1-1/2"-N
3230-WF-1324-C1A-1-1/2"-N
D
4
F
B
A
3
2
1 5 6 8
E
7
C
REV.
APPROVED
CHK.
DES.
REV. DATE REVISION DESCRIPTION
CLIENT
LEAD ENGINEER
SCALE DRAWING NUMBER
CHECK DESIGN CHECK DRAWING
DESIGNED BY DRAWN BY
APPROVAL DATE
APPROVAL DATE
APPROVED
CHK.
DES.
REV. DATE REVISION DESCRIPTION REFERENCE DRAWING No.
1:100
0
1:200
5m
10m
0
5m
10m
15m
20m
1:500
10m
0
20m
30m
40m
50m
1:1000
0
100m
50m
1:20
0
0.5m
1m
1.5m
2m
0
1:25
0.5m
1m
1.5m
1:33
1/3
2.5m
2m
0
1m
2m
3m
0
1:50
1m
2m
3m
4m
5m
CAD FILE NAME: P:0CAD000SPEM**
MODEL UPDATED:
DWG. FILE UPDATED:
MANUAL CHANGES MADE: YES NO YES NO YES NO
PROJECT MANAGER
ENGINEERING MANAGER
AREA PROJECTENGINEER
REFERENCE DRAWINGS
SAFETY SHARE:
APPROVAL DATE
CONTRACT
NO.
SAFETY SHARE :
BA6CVA1.IGR
NOTICE: THIS DRAWING HAS NOT BEEN PUBLISHED AND IS THE SOLE
PROPERTY OF FLUOR AND IS LENT TO THE BORROWER FOR THEIR
CONFIDENTIAL USE ONLY, AND IN CONSIDERATION OF THE LOAN OF THIS
DRAWING, THE BORROWER PROMISES AND AGREES TO RETURN IT UPON
REQUEST AND AGREES THAT IT WILL NOT BE REPRODUCED, COPIED LENT
OR OTHERWISE DISPOSED OF DIRECTLY OR INDIRECTLY, NOR USED FOR
ANY OTHER PURPOSE OTHER THAN WHICH IT IS FURNISHED.
NONE
Apr 2011
240K-C2-
3230
39311
XS
3230
39311
XL
3230
39312
XS
3230
39312
XL
3230
39313
LAH
3230
39314
PAH
3230
39315
XS
3230
39315
XL
3230
39316
SI
3230
39317
SI
3230
39318
VI
3230
39319
LAHH
3230
39301
TI
3230
39302
TI
3230
39303
TI
3230
39304
TI
3230
39305
ZA
3230
39306
ZA
3230
39307
ZA
3230
39308
ZA
3230
39309
ZI
3230
39310
ZI
P2
P2
P2
H, P2
HH, P2
H, P2
H, P2
H, P2
GUIDE RAIL
LUBE
BEARING
LUBE
LUBE OIL
TANK
BEARING
LUBE
BEARING LUBE
SYSTEM MAIN
FIXED ROOL
MOVABLE ROLL
GEAR BOX
FEED
MOVABLE ROLL
LEFT
FIXED ROLL
LEFT
MOVABLE ROLL
RIGHT
FIXED ROLL
RIGHT
MOVABLE ROLL
LEFT
MOVABLE ROLL
LEFT
MOVABLE ROLL
LEFT
MOVABLE ROLL
RIGHT
MOVABLE ROLL
RIGHT
MOVABLE ROLL
RIGHT
T1
T1
3230
39514
PA
3230
39519
JDAH
3230
39517
SI
3230
39501
TI
P2
H, P2
3230
39502
TI H, P2
3230
39503
TI H, P2
3230
39504
TI H, P2
3230
39505
TI H, P2
3230
39506
TI H, P2
3230
39507
TI H, P2
3230
39508
ZAH
3230
39509
ZAH
3230
39510
XL
3230
39510
XS
3230
39513
PDAH
LUBE OIL
PUMP
LUBE OIL
PRESSURE
FIXED ROLL
MOTOR
FIXED/MOVABLE
ROLL POWER
MOTOR SPEED
OIL SUMP
MOTOR
BEARING
GEAR BOX
BEARING
MOTOR
BEARING
MOTOR
WINDING
MOTOR
WINDING
MOTOR
WINDING
MOTOR
COUPLING
MOTOR
COUPLING
GEAR LUBE
OIL
LUBE OIL
FILTER
3230
39581
II
3230
39581
HS
J/SP
3230
39582
II
3230
39582
XA
3230
39582
HS
J/SP
T1
T1
3230
39414
PA
3230
39418
ZI
3230
39419
ZI
3230
39401
TI H, P2
3230
39602
TI H, P2
3230
39403
TI H, P2
3230
39404
TI H, P2
3230
39405
TI H, P2
3230
39406
TI H, P2
3230
39407
TI H, P2
3230
39408
ZAH
3230
39409
ZAH
3230
39410
XL
3230
39410
XS
3230
39413
PDAH
LUBE OIL
PUMP
LUBE OIL
PRESSURE
FIXED ROLL
MOTOR
MOVABLE ROLL
LEFT POSITION
MOTOR SPEED
OIL SUMP
MOTOR
BEARING
GEAR BOX
BEARING
MOTOR
BEARING
MOTOR
WINDING
MOTOR
WINDING
MOTOR
WINDING
MOTOR
COUPLING
MOTOR
COUPLING
GEAR LUBE
OIL
LUBE OIL
FILTER
3230
39481
II
3230
39481
XA
3230
39481
HS
J/SP
3230
39482
II
3230
39482
XA
3230
39482
HS
J/SP
T1
T1
3230
39614
PI
3230
39615
PI
3230
39616
XS
3230
39616
XL
3230
39618
XS
3230
39618
XL
3230
39617
PAH
3230
39619
PDAH
3230
39613
PDAH
3230
39601
LAL
3230
39602
LAH
3230
39605
XL
3230
39605
XS
3230
39603
XL
3230
39603
XS
3230
39604
XL
3230
39604
XS
3230
39606
XL
3230
39606
XS
3230
39607
XL
3230
39607
XS
3230
39608
XL
3230
39608
XS
3230
39609
XL
3230
39609
XS
3230
39610
TI
3230
39417
SI
MOVABLE ROLL
RIGHT POSITION
H, P2
P2
P2
P2
P2
H, P2
H, P2
A-B
HYDRAULIC SYST.
LEFT
HYDRAULIC SYST.
RIGHT
HYDRAULIC
PUMP A
HYDRAULIC
PUMP B
SOLENOID Y2
OIL FILTER
SOLENOID Y1
OIL FILTER LEFT
OIL FILTER RIGHT
OIL TANK
OIL TANK
SOLENOID Y4
BLOCK VALVE
SOLENOID Y8
SOLENOID Y11
SOLENOID Y3
SOLENOID Y9
BLOCK VALVE
HYDRAULIC
OIL TEMP.
3230
39682
II
3230
39682
XA
3230
39682
HS
J/SP
3230
39681
II
3230
39681
XA
3230
39681
HS
J/SP
3230-AI-1125-G1A-1/2"-N 1/2"x1/4"
3"x2"
3200-WF-1332-C1A-1-1/2"-N
3200-WF-1331-C1A-2"-N
CR-028 ROLL CONTROLS.
CR-028 FIXED ROLL
DRIVE CONTROLS
CR-028 MOVABLE ROLL
DRIVE CONTROLS
CR-028 HYDRAULIC
SYSTEM
P.O NO.:
VENDOR DWG NO.:
VENDOR:
P.O NO.:
VENDOR DWG NO.:
VENDOR:
P.O NO.:
VENDOR DWG NO.:
VENDOR:
P.O NO.:
VENDOR DWG NO.:
VENDOR:
CR-028 ROLL CONTROLS
CR-028 MOVABLE ROLL
DRIVE CONTROLS
CR-028 FIXED ROLL
DRIVE CONTROLS CR-028 HYDRAULIC SYSTEM
AFD - MOVABLE ROLL
AFD - FIXED ROLL
HOSE BY VENDOR
32 MM ID
HOSE BY VENDOR
32 MM ID
HOSE BY VENDOR
32 MM ID
HOSE BY VENDOR
32 MM ID
INSTRUMENT AIR
3125 3900-25J-022
CLOSED LOOP CWS
HEADER
3126 3200-25J-083
CLOSED LOOP CWR
HEADER
3127 3200-25J-084
AG
KM
LT
ISSUED FOR CLIENT REVIEW
23-Dec-11
B
RP
ISSUED FOR COMBINED REVIEW
19-Jul-11
A
12/23/2011
K.MUNDY
A.GUNSON
T. OH
L.TAMELIN
12/23/2011
2:57:24
PM
WBS: 3230
B
PIPING AND INSTRUMENTATION DIAGRAM
TERTIARY CRUSHING
3200-25J-072
HPGR NO. 8 LUBE SYSTEM
3230
39581
XA FAULT
FAULT FAULT
FAULT
FAULT
FAULT
P2
3230
39625
XA COMMON ALARM
3230
39425
XA COMMON ALARM
3230
39525
XA COMMON ALARM
3230
39325
XA COMMON ALARM
H, P2
CLOSED LOOP CWS
HEADER
4079 3200-25J-083
CLOSED LOOP CWS
HEADER
4086 3200-25J-083
CLOSED LOOP CWS
HEADER
4081 3200-25J-083
CLOSED LOOP CWS
HEADER
4087 3200-25J-083
CLOSED LOOP CWS
HEADER
4080 3200-25J-083
CLOSED LOOP CWR
HEADER
4088 3200-25J-084
CLOSED LOOP CWR
HEADER
4085 3200-25J-084
CLOSED LOOP CWR
HEADER
4084 3200-25J-084
CLOSED LOOP CWR
HEADER
4083 3200-25J-084
CLOSED LOOP CWR
HEADER
4082 3200-25J-084
3200-WF-1328-C1A-2"-N
3200-WF-1329-C1A-2"-N
3200-WF-1189-C1A-3"-N
3200-WF-1331-C1A-2"-N
3200-WF-1332-C1A-1-1/2"-N
3200-WF-1330-C1A-1-1/2"-N
3230-WF-1338-C1A-2"-N
3230-WF-1337-C1A-2"-N
3230-WF-1334-C1A-2"-N
3230-WF-1335-C1A-2"-N
3230-WF-1339-C1A-1-1/2"-N
3230-WF-1336-C1A-1-1/2"-N
GEAR
REDUCER
GEAR
REDUCER
GEAR
REDUCER
RHS
T1
3230
07302
HSS
A-D
3230
07301
HSA
3230
07381
XA
3230
07383 G
TI
3230
07308
XA P1
3230
07382 G
TE
3230
07382 H
TI
BRG
REAR
H, P2
HH, P1
3230
07343
TI
3230
07301
HSA
3230
07303 A
SI
3230
07381 H
TI
BRG
REAR
H, P2
HH, P1
3230
07381 G
TE
3230
07410
SE
3230
07353
TI
3230
07310
WIT
3230
07305
ZAHH
RHS
A-E
3230
07382 G
TI
3230
07382 H
TE
3230
07322 A
ZS
3230
07381 G
TI
3230
07301
HSS
3230
07321
SE
3230
07301
HSS
RHS
3230
07331 B
YI
3230
07302
HSS
3230
07304
ZSHH
3230
07306
TI H, P2
HH, P1
3230
07383 G
TE
3230
07321
SAL P1
3230
07343
TE
3230
07307
TI
3230
07303 A
SE
3230
07385
XA
3230
07353
TE
3230
07304
ZAH
3230
07363
TE
3230
07383
XA
3230
07322 B
ZA
P1
3230
07331 A
YI
3230
07308 A
XS
TEAR
3230
07303
SDI
3230
07322 A
ZA
3230
07303 B
SI
3230
07313 A
XY
3230
07313 B
XY
3230
07303 B
ST
3230
07385
HS
J/SP
3230
07313
XIH
3230
07303 B
SE
3230
07310
WE
3230
07322 B
ZS
3230
07313 B
XE
3230
07313 A
XE
3230
07382
II
3230
07315 A
LSH
3230
07306
TE
3230
07305
ZAHH
3230
07321
SSL
3230
07382
XA
FAULT
3230
07304
ZSH
A-E
3230
07303 A
ST
3230
07310
WI
3230
07302
HSA A-D
3230
07381 H
TE
3230
07307
TE
3230
07305
ZSH
3230
07305
ZAH
3230
07383 H
TI
BRG
REAR
H, P2
HH, P1
3230
07383 H
TE
3230
07385
II
3230
07302
HSA 3230
07315 B
LSH
3230
07331 B
YT
3230
07305
ZSHH
3230
07315 A
LAH P1
3230
07383
II
3230
07381
II
3230
07308 B
XS
3230
07315 B
LAH P1
3230
07331 A
YT
3230
07363
TI
TER. CRUSHER PRODUCT
HPGR CRUSHER NO.2,
C2-3230-CR-016
1829 3200-25J-051
TER. CRUSHER PRODUCT
HPGR CRUSHER NO.1,
C2-3230-CR-015
1360 3200-25J-049
TER. CRUSHER PRODUCT
HPGR CRUSHER NO.3,
C2-3230-CR-017
1830 3200-25J-053
TER. CRUSHER PRODUCT
HPGR PRODUCT CONVEYOR
NO.1, C2-3230-CV-018
1292 3200-25J-075
TER. CRUSHER PRODUCT
HPGR CRUSHER NO.4,
C2-3230-CR-018
1831 3200-25J-055
P1
WRIM
RHS
P2
DUCTING
LHS
A-E
BRG
FRONT
H, P2
HH, P1
BRG
FRONT
H, P2
HH, P1
A-D
FAULT
H, P2
HH, P1
A-D
P1
LHS
FAULT
A,B
FAULT
H, P1
H, P2
HH, P1
P1
BRG
FRONT
H, P2
HH, P1
LHS
LHS
E-H,
J-L
A - N
H, P2
HH, P1
E-H,
J-L
P2
H, P2
HH, P1
WRIM
H, P2
RHS
J-L
E-H
P1
L1, P1
LHS
P1
WRIM
HPGR
PRODUCTION
L, P2
E-H
J-L
LHS
P2
RHS
P1
A-E
AG
KM
LT
ISSUED FOR CLIENT REVIEW
23-Dec-11
B
RP
ISSUED FOR COMBINED REVIEW
23-Jun-11
A
12/23/2011
K.MUNDY
A.GUNSON
T. OH
L.TAMELIN
12/23/2011
2:58:07
PM
WBS: 3230
B
PIPING AND INSTRUMENTATION DIAGRAM
TERTIARY CRUSHING
3200-25J-073
HPGR DISCHARGE CONVEYOR NO. 1
C2-3230-CV-017
C2-3230-BN-061
C2-3230-MA-031
V
V
SIZE:
C2-3230-SL-035
CV-017 BELT SCALE
SIZE:
MOTOR: 2700.00 kW
C2-3230-CV-017
HPGR DISCHARGE CONVEYOR NO.1
C2-3230-ST-471
V
SIZE:
C2-3230-BN-061
CV-017 TRAMP METAL BIN
C2-3230-ST-075
ES
C2-3230-ZE-011
ES
SIZE:
C2-3230-ST-471
CV-017 TRAMP METAL CHUTE
V
V
V
V
V
V
V
V
V V
V
ES
3230
07311
XA
+
SIZE:
C2-3230-MA-031
CV-017 SELF CLEANING MAGNET
V V
ES
V
V
V
V
V
V
C2-3230-SL-035
SIZE:
C2-3230-ST-075
HPGR DISCHARGE CONVEYOR NO. 1 HEAD/DISCHARGE CHUTE
D
4
F
B
A
3
2
1 5 6 8
E
7
C
REV.
APPROVED
CHK.
DES.
REV. DATE REVISION DESCRIPTION
CLIENT
LEAD ENGINEER
SCALE DRAWING NUMBER
CHECK DESIGN CHECK DRAWING
DESIGNED BY DRAWN BY
APPROVAL DATE
APPROVAL DATE
APPROVED
CHK.
DES.
REV. DATE REVISION DESCRIPTION REFERENCE DRAWING No.
1:100
0
1:200
5m
10m
0
5m
10m
15m
20m
1:500
10m
0
20m
30m
40m
50m
1:1000
0
100m
50m
1:20
0
0.5m
1m
1.5m
2m
0
1:25
0.5m
1m
1.5m
1:33
1/3
2.5m
2m
0
1m
2m
3m
0
1:50
1m
2m
3m
4m
5m
CAD FILE NAME: P:0CAD000SPEM**
MODEL UPDATED:
DWG. FILE UPDATED:
MANUAL CHANGES MADE: YES NO YES NO YES NO
PROJECT MANAGER
ENGINEERING MANAGER
AREA PROJECTENGINEER
REFERENCE DRAWINGS
SAFETY SHARE:
APPROVAL DATE
CONTRACT
NO.
SAFETY SHARE :
BA6CVA1.IGR
NOTICE: THIS DRAWING HAS NOT BEEN PUBLISHED AND IS THE SOLE
PROPERTY OF FLUOR AND IS LENT TO THE BORROWER FOR THEIR
CONFIDENTIAL USE ONLY, AND IN CONSIDERATION OF THE LOAN OF THIS
DRAWING, THE BORROWER PROMISES AND AGREES TO RETURN IT UPON
REQUEST AND AGREES THAT IT WILL NOT BE REPRODUCED, COPIED LENT
OR OTHERWISE DISPOSED OF DIRECTLY OR INDIRECTLY, NOR USED FOR
ANY OTHER PURPOSE OTHER THAN WHICH IT IS FURNISHED.
NONE
Apr 2011
240K-C2-
FILTERED DUST
C2-3230-DC-161
3468 3200-25J-084
FILTERED DUST
C2-3230-DC-162
3467 3200-25J-064
FILTERED DUST
C2-3230-DC-163
3466 3200-25J-064
FILTERED DUST
C2-3230-DC-041
3465 3200-25J-064
HPGR FEED BYPASS
HPGR FEED CONVEYOR,
C2-3230-DV-031
4211
3200-25J-049
HPGR FEED BYPASS
HPGR FEED CONVEYOR,
C2-3230-DV-031
4212
3200-25J-051
HPGR FEED BYPASS
HPGR FEED CONVEYOR,
C2-3230-DV-031
4213
3200-25J-053
HPGR FEED BYPASS
HPGR FEED CONVEYOR,
C2-3230-DV-031
4214
3200-25J-055
3230
07341
VE
3230
07341
VT
3230
07342
LE
3230
07342
LSL
3230
07342
LA
3230
07341
VI
3230
07351
VE
3230
07351
VT
3230
07352
LE
3230
07352
LSL
3230
07352
LA
3230
07351
VI
3230
07361
VE
3230
07361
VT
3230
07362
LE
3230
07362
LSL
3230
07362
LA
3230
07361
VI
H,P2
HH,P1
H,P2
HH,P1
H,P2
HH,P1
L,P2
L,P2 L,P2
IMAGE IMAGE
C
D
E
F
B
C2-3240-DC-234
T5
T5 T5
A - F A - F
A - F A - F
A
SIZE:
C2-3230-ZE-011
CV-017 BELT RIP DETECTOR
DUST
COARSE ORE SCREENING
DUST COLLECTOR,
4174
T1
GEAR
REDUCER
GEAR
REDUCER
GEAR
REDUCER
RHS
3230
07403 B
SE
3230
07403 B
ST
3230
07403 B
SI
3230
07403
SDI
3230
07483
XA
3230
07404
ZAH
3230
07407 A
TI
3230
07410
SE
3230
07443
TI
3230
07483
II
3230
07404
ZAH
3230
07404
ZAHH
3230
07407 A
TE
3230
07402
HSA A-D
3230
07483 G
TI
3230
07402
HSS
A-D
3230
07415 B
LAH P1
3230
07415 B
LSH
3230
07483 H
TI
BRG
REAR
H, P2
HH, P1
3230
07413 B
XE
3230
07413 A
XE
3230
07413
XIH
3230
07413 B
XY
3230
07413 A
XY
3230
07408 A
XS
TEAR
3230
07431 B
YI
3230
07443
TE
3230
07406 A
TI H, P2
HH, P1
3230
07482 H
TE
3230
07482 G
TE
3230
07410
WIT
3230
07481 G
TE
3230
07403 A
SI
3230
07482 H
TI
BRG
REAR
H, P2
HH, P1
3230
07485
II
3230
07421
SSL
3230
07422 B
ZS
3230
07410
WE
3230
07485
HS
J/SP
3230
07485
XA
3230
07421
SE
3230
07421
SAL P1
3230
07422 A
ZS
3230
07405
ZAHH
RHS
A-E
3230
07401
HSA
3230
07401
HSA
3230
07463
TI
3230
07431 A
YT
3230
07431 B
YT
3230
07483 H
TE
3230
07404
ZSH
A-E
3230
07403 A
ST
3230
07482
II
3230
07422 A
ZA
3230
07422 B
ZA
P1
3230
07453
TE
3230
07483 G
TE
3230
07402
HSS
3230
07401
HSS
3230
07408
XA P1
3230
07453
TI
3230
07481 H
TI
BRG
REAR
H, P2
HH, P1
3230
07408 B
XS
3230
07405
ZSHH
3230
07402
HSA
3230
07405
ZSH
3230
07406 A
TE
3230
07410
WI
3230
07415 A
LSH
3230
07431 A
YI
3230
07403 A
SE
3230
07463
TE
3230
07401
HSS
RHS
3230
07404
ZSHH
3230
07481 G
TI
3230
07482 G
TI
3230
07481
XA
3230
07481
II
3230
07415 A
LAH P1
3230
07482
XA
FAULT
3230
07481 H
TE
DUST
COARSE ORE SCREENING
DUST COLLECTOR
1967 3200-25J-020
TER. CRUSHER PRODUCT
HPGR PRODUCT CONVEYOR
NO.2, C2-3230-CV-028
2047 3200-25J-076
TER. CRUSHER PRODUCT
HPGR CRUSHER NO.7,
C2-3230-CR-027
1965 3200-25J-061
TER. CRUSHER PRODUCT
HPGR CRUSHER NO.8,
C2-3230-CR-028
1966 3200-25J-063
TER. CRUSHER PRODUCT
HPGR CRUSHER NO.5,
C2-3230-CR-025
1963 3200-25J-057
TER. CRUSHER PRODUCT
HPGR CRUSHER NO.6,
C2-3230-CR-026
1964 3200-25J-059
P1
H, P1
FAULT
LHS
A-D
P1
LHS
A-E
P2
RHS
P1
LHS
LHS
P1
P1
H, P2
RHS LHS
E-H,
J-L
P2
BRG
FRONT
H, P2
HH, P1
FAULT
H, P2
HH, P1
A-D
WRIM
RHS
BRG
FRONT
H, P2
HH, P1
BRG
FRONT
H, P2
HH, P1
DUCTING
A-E
P2
E-H
J-L
WRIM
L1, P1
HPGR
PRODUCTION
L, P2
J-L
E-H
E-H,
J-L
WRIM
A - N
H, P2
HH, P1
H, P2
HH, P1
LHS
H, P2
HH, P1
A,B
FAULT
P1
C2-3230-ST-076
T5
3230
07411
XA
+
SIZE:
C2-3230-SL-038
CV-027 BELT SCALE
SIZE: 2430 mm
MOTOR: 2700.00 kW
C2-3230-CV-027
HPGR DISCHARGE CONVEYOR NO.2
V
ES
V
C2-3230-MA-032
C2-3230-BN-062
C2-3230-ST-472
V
SIZE:
C2-3230-MA-032
CV-027 SELF CLEANING MAGNET
SIZE:
C2-3230-ST-472
CV-027 TRAMP METAL CHUTE
SIZE:
C2-3230-BN-062
CV-027 TRAMP METAL BIN
V
V
C2-3230-CV-027
T5
V
AG
KM
LT
ISSUED FOR CLIENT REVIEW
23-Dec-11
B
RP
ISSUED FOR COMBINED REVIEW
23-Jun-11
A
12/23/2011
K.MUNDY
A.GUNSON
T. OH
L.TAMELIN
1/3/2012
10:49:14
AM
WBS: 3230
B
PIPING AND INSTRUMENTATION DIAGRAM
TERTIARY CRUSHING
3200-25J-074
HPGR DISCHARGE CONVEYOR NO. 2
SIZE:
C2-3230-ST-076
HPGR DISCHARGE CONVEYOR NO. 2 HEAD/DISCHARGE CHUTE
C2-3230-SL-038
V
V V
V V
V
V
V
V
T5
V V
V
V
V
V V
ES
ES
ES
D
4
F
B
A
3
2
1 5 6 8
E
7
C
REV.
APPROVED
CHK.
DES.
REV. DATE REVISION DESCRIPTION
CLIENT
LEAD ENGINEER
SCALE DRAWING NUMBER
CHECK DESIGN CHECK DRAWING
DESIGNED BY DRAWN BY
APPROVAL DATE
APPROVAL DATE
APPROVED
CHK.
DES.
REV. DATE REVISION DESCRIPTION REFERENCE DRAWING No.
1:100
0
1:200
5m
10m
0
5m
10m
15m
20m
1:500
10m
0
20m
30m
40m
50m
1:1000
0
100m
50m
1:20
0
0.5m
1m
1.5m
2m
0
1:25
0.5m
1m
1.5m
1:33
1/3
2.5m
2m
0
1m
2m
3m
0
1:50
1m
2m
3m
4m
5m
CAD FILE NAME: P:0CAD000SPEM**
MODEL UPDATED:
DWG. FILE UPDATED:
MANUAL CHANGES MADE: YES NO YES NO YES NO
PROJECT MANAGER
ENGINEERING MANAGER
AREA PROJECTENGINEER
REFERENCE DRAWINGS
SAFETY SHARE:
APPROVAL DATE
CONTRACT
NO.
SAFETY SHARE :
BA6CVA1.IGR
NOTICE: THIS DRAWING HAS NOT BEEN PUBLISHED AND IS THE SOLE
PROPERTY OF FLUOR AND IS LENT TO THE BORROWER FOR THEIR
CONFIDENTIAL USE ONLY, AND IN CONSIDERATION OF THE LOAN OF THIS
DRAWING, THE BORROWER PROMISES AND AGREES TO RETURN IT UPON
REQUEST AND AGREES THAT IT WILL NOT BE REPRODUCED, COPIED LENT
OR OTHERWISE DISPOSED OF DIRECTLY OR INDIRECTLY, NOR USED FOR
ANY OTHER PURPOSE OTHER THAN WHICH IT IS FURNISHED.
NONE
Apr 2011
240K-C2-
FILTERED DUST
C2-3230-DC-191
4224 3200-25J-064
FILTERED DUST
C2-3230-DC-192
4225 3200-25J-064
FILTERED DUST
C2-3230-DC-193
4226 3200-25J-064
FILTERED DUST
C2-3230-DC-079
4227 3200-25J-064
C2-3230-ZE-012
HPGR FEED BYPASS
HPGR FEED DIVERTER
C2-3230-DV-035
4228
3200-25J-057
HPGR FEED BYPASS
HPGR FEED DIVERTER
C2-3230-DV-036
4229
3200-25J-059
HPGR FEED BYPASS
HPGR FEED DIVERTER
C2-3230-DV-037
4230
3200-25J-061
HPGR FEED BYPASS
HPGR FEED DIVERTER
C2-3230-DV-038
4231
3200-25J-063
IMAGE IMAGE
3230
07441
VE
3230
07442
LE
3230
07442
LSI
3230
07441
VT
3230
07441
VI
3230
07442
LA
H,P2
HH,P1
3230
07451
VE
3230
07452
LE
3230
07452
LSI
3230
07451
VT
3230
07451
VI
3230
07452
LA
H,P2
HH,P1
3230
07461
VE
3230
07462
LE
3230
07462
LSI
3230
07461
VT
3230
07461
VI
3230
07462
LA
H,P2
HH,P1
C
D
E
F
B
C2-3240-DC-045
A
A - F A - F
A - F A - F
SIZE:
C2-3230-ZE-012
CV-027 BELT RIP DETECTOR
GEAR
REDUCER
GEAR
REDUCER
GEAR
REDUCER
GEAR
REDUCER
GEAR
REDUCER
GEAR
REDUCER
LHS
J
D, E
OVER
TRAVEL
3230
07581
XA
3230
07581
II
3230
07507 A
TI
H, P2
HH, P1
RHS
3230
07512 B
ZS
3230
07505
ZSH
3230
07504
ZSH
3230
07501
HSS
LHS
3230
07504
ZAHH
P1
3230
07505
ZAHH
3230
07502
HSA
J
RLS
3230
07506 A
TI
3230
07503 A
ST
3230
07581
HS
J/SP
3230
07581 G
TE
3230
07581 H
TI
BRG
FRONT
H, P2
HH, P1
3230
07507 B
TE
3230
07504
ZSHH
3230
07513
XI
3230
07582 H
TI
BRG
FRONT
H, P2
HH, P1
3230
07512 B
ZA
P1
3230
07582
II
3230
07504
ZSH
LHS
3230
07506 B
TI
3230
07501
HSS
3230
07513
XY
B
3230
07513
XY
3230
07512 C
ZS
3230
07513
XE
3230
07513
XE
3230
07506 B
TE
LHS
RHS
3230
07582 G
TI
BRG
REAR
H, P2
HH, P1
3230
07505
ZAH
3230
07581 H
TE
3230
07582 H
TE
3230
07501
HSA
P1
3230
07503 A
SI
3230
07508 A
XS
3230
07518
FIC
HH, P1
H, P2
L, P2
LL, P1
3230
07518
FIT
M
3230
07512 A
ZA
3230
07503 B
SE
3230
07503 B
ST
3230
07505
ZAHH P1
A-C
3230
07505
ZAH
3230
07504
ZAHH P1
A-C
3230
07504
ZAH
3230
07503 B
SI
3230
07503
SDI H, P1
3230
07582 G
TE
3230
07502
HSS
RHS
3230
07504
ZAH
3230
07508
XA
A,B
3230
07502
HSS
RHS
3230
07583
XA
3230
07583 A
SIC
3230
07583
XL RDY/RUN
SP
TRIP
3230
07583
XS F/R
L/R
3230
07583
XY
3230
07583
II
3230
07506 A
TE
3230
07583
HS
3230
07583 B
SIC
3230
07541
VE
3230
07552
LE
3230
07551
VE
3230
07582
XA
3230
07507 A
TE
3230
07512 D
ZS
3230
07512 C
ZA
3230
07505
ZSH
3230
07553
TE
3230
07543
TI
3230
07504
ZSHH
LHS
RHS D, E
3230
07542
LSL
3230
07542
LE
3230
07505
ZSHH
3230
07502
HSA
3230
07505
ZSHH
3230
07541
VT
3230
07542
LA
L,P2
3230
07552
LSL
3230
07551
VT
3230
07541
VI
H,P2
HH,P1
3230
07552
LA
L,P2
3230
07551
VI
H,P2
HH,P1
3230
07507 B
TI
3230
07512 D
ZA
OVER
TRAVEL
3230
07512 A
ZS
3230
07553
TI
3230
07582
HS
J/SP
3230
07501
HSA
LHS
J
3230
07581 G
TI
BRG
REAR
H, P2
HH, P1
3230
07543
TE
3230
07508 B
XS
3230
07503 A
SE
HH, P1
H, P2
HH, P1
H, P2
FRESH WATER
CRUSHING AREA HEAT EXCH.,
C2-3200-HX-773/774/775
3489 3200-25J-082
TERITARY CRUSHER
BALL MILL FEED SURGE BINS,
C2-3310-BN-101/201/301
1291 3300-25J-001
TERITARY CRUSHER
HPGR DISCHARGE
CONVEYOR NO.1,
1292 3200-25J-073
DUST
COARSE ORE SCREENING
DUST COLLECTOR,
3257 3200-25J-020
FAULT
D, E
LHS
END
TRAVEL
RUN PERMISSIVE
P1
A-C
A-C
J
P2
P1
LHS
RHS
P2
B
C2-3230-CV-017
A
A TO N
P1 A-H
RHS
RHS
P2
H1, P2
A-H
A
P2
RHS
LHS
RHS
H, P2
HH, P1
LHS
SP
P2 P2, P1
P2
P1
LHS
A-H
P2, P1
A-H
P1
A-H
P1
RHS
FAULT
D, E
TEAR
LHS
END
TRAVEL
T4
C2-3230-CV-018
C2-3230-ST-260
V V
V
V
2"
C2-3230-ZE-014
ES
3230
07518
FV
+
3230
07518
FE
+
T4
C2-3230-TR-018
SIZE:
C2-3230-ST-260
CV-018 CONVEYOR HEAD CHUTE
SIZE:
MOTOR:
C2-3230-TR-018
CV-018 TRIPPER CAR
AG
KM
LT
ISSUED FOR CLIENT REVIEW
23-Dec-11
B
RP
ISSUED FOR COMBINED REVIEW
23-Jun-11
A
12/23/2011
K. MUNDY
A. GUNSON
T. OH
L. TAMELIN
1/3/2012
1:00:59
PM
WBS: 3230
B
PIPING AND INSTRUMENTATION DIAGRAM
TERTIARY CRUSHING
3200-25J-075
HPGR PRODUCT CONVEYOR NO. 1
3230
07511
XA
+
3230-WF- -C1A-2"-N
V
V
SIZE:
MATERIAL:
MOTOR:
C2-3230-CV-018
HPGR PRODUCT CONVEYOR NO.1
V
V
ES
D
4
F
B
A
3
2
1 5 6 8
E
7
C
REV.
APPROVED
CHK.
DES.
REV. DATE REVISION DESCRIPTION
CLIENT
LEAD ENGINEER
SCALE DRAWING NUMBER
CHECK DESIGN CHECK DRAWING
DESIGNED BY DRAWN BY
APPROVAL DATE
APPROVAL DATE
APPROVED
CHK.
DES.
REV. DATE REVISION DESCRIPTION REFERENCE DRAWING No.
1:100
0
1:200
5m
10m
0
5m
10m
15m
20m
1:500
10m
0
20m
30m
40m
50m
1:1000
0
100m
50m
1:20
0
0.5m
1m
1.5m
2m
0
1:25
0.5m
1m
1.5m
1:33
1/3
2.5m
2m
0
1m
2m
3m
0
1:50
1m
2m
3m
4m
5m
CAD FILE NAME: P:0CAD000SPEM**
MODEL UPDATED:
DWG. FILE UPDATED:
MANUAL CHANGES MADE: YES NO YES NO YES NO
PROJECT MANAGER
ENGINEERING MANAGER
AREA PROJECTENGINEER
REFERENCE DRAWINGS
SAFETY SHARE:
APPROVAL DATE
CONTRACT
NO.
SAFETY SHARE :
BA6CVA1.IGR
NOTICE: THIS DRAWING HAS NOT BEEN PUBLISHED AND IS THE SOLE
PROPERTY OF FLUOR AND IS LENT TO THE BORROWER FOR THEIR
CONFIDENTIAL USE ONLY, AND IN CONSIDERATION OF THE LOAN OF THIS
DRAWING, THE BORROWER PROMISES AND AGREES TO RETURN IT UPON
REQUEST AND AGREES THAT IT WILL NOT BE REPRODUCED, COPIED LENT
OR OTHERWISE DISPOSED OF DIRECTLY OR INDIRECTLY, NOR USED FOR
ANY OTHER PURPOSE OTHER THAN WHICH IT IS FURNISHED.
NONE
Apr 2011
240K-C2-
SIZE:
C2-3230-ZE-014
CV-018 BELT RIP DETECTOR
ES
ES
C2-3240-DC-234
PRODUCT
GEAR
REDUCER
GEAR
REDUCER
GEAR
REDUCER
GEAR
REDUCER
GEAR
REDUCER
GEAR
REDUCER
OVER
TRAVEL
D, E
J
LHS
3230
07613
XE
3230
07605
ZAHH P1
A-C
3230
07683
XY
3230
07612 C
ZA
3230
07612 A
ZA
3230
07604
ZSH
3230
07607 A
TE
3230
07605
ZSH
3230
07605
ZAH
3230
07612 D
ZS
3230
07604
ZAHH P1
A-C
3230
07604
ZAHH
P1
3230
07601
HSA
P1
3230
07683
II
3230
07607 A
TI
H, P2
HH, P1
RHS
3230
07605
ZAHH
3230
07604
ZAH
3230
07613
XY
3230
07681
HS
J/SP
3230
07605
ZAH
3230
07681 G
TE
3230
07681 H
TE
3230
07605
ZSHH
3230
07601
HSA
LHS
J
3230
07605
ZSH
3230
07681 G
TI
BRG
REAR
H, P2
HH, P1
3230
07682
XA
3230
07607 A
TI
3230
07683
XL
TRIP
RDY/RUN
SP
3230
07681 H
TI
BRG
FRONT
H, P2
HH, P1
3230
07682 G
TE
3230
07603 A
ST
3230
07603 A
SI
3230
07682 H
TE
3230
07508
XA
A,B
3230
07612 C
ZS
3230
07682
II
3230
07681
II
3230
07682 G
TI
BRG
REAR
H, P2
HH, P1
3230
07613
XY
B
3230
07602
HSA
3230
07601
HSS
LHS
3230
07653 L
TI
3230
07683 B
SIC
3230
07683
XA
3230
07682 H
TI
BRG
FRONT
H, P2
HH, P1
3230
07604
ZSH
LHS
3230
07681
XA
3230
07602
HSA
J
RLS
3230
07613
XE
3230
07608 A
XS
3230
07653 L
TE
3230
07612 B
ZS
3230
07601
HSS
3230
07643
TI
3230
07607 A
TE
3230
07683
XS F/R
L/R
3230
07605
ZSHH
3230
07608 B
XS
3230
07612 A
ZS
3230
07604
ZSHH
3230
07612 D
ZA
OVER
TRAVEL
3230
07683
HS
3230
07604
ZAH
3230
07643
TE
3230
07603 A
SE
3230
07613
XI
3230
07682
HS
J/SP
3230
07603
SDI H, P1
3230
07602
HSS
RHS
3230
07602
HSS
RHS
3230
07603 B
ST
3230
07603 B
SI
3230
07612 B
ZA
P1
3230
07603 B
SE
3230
07604
ZSHH
RHS D, E LHS
3230
07683 A
SIC
HH, P1
H, P2
HH, P1
H, P2
DUST
COARSE ORE SCREENING
DUST COLLECTOR,
3300 3200-25J-064
TER. CRUSHER PRODUCT
BALL MILL FEED SURGE BINS,
C2-3310-BN-401/501/601
1548 3300-25J-010
TERITARY CRUSHER
HPGR DISCHARGE
CONVEYOR NO.2,
2047 3200-25J-074
FRESH WATER
CRUSHING AREA HEAT EXCH.,
C2-3200-HX-773/774/775
3490 3200-25J-082
END
TRAVEL
TEAR
LHS
RHS
A
B
P1
RHS
P2
P2
END
TRAVEL
P2
P1
FAULT
D, E
LHS
P1
RUN PERMISSIVE
SP
A-H
D, E
P1
A-H
FAULT
P2
LHS
P2
P1
A-C
RHS
A
A-H
RHS
P1
A TO N
LHS
A-H
H, P2
HH, P1
LHS
A-C
J
A-H
H1, P2
P2
RHS
C2-3230-CV-027
AG
KM
LT
ISSUED FOR CLIENT REVIEW
23-Dec-11
B
RP
ISSUED FOR COMBINED REVIEW
23-Jun-11
A
12/23/2011
K. MUNDY
A. GUNSON
T. OH
L. TAMELIN
1/3/2012
3:00:11
PM
WBS: 3230
B
PIPING AND INSTRUMENTATION DIAGRAM
TERTIARY CRUSHING
3200-25J-076
HPGR PRODUCT CONVEYOR NO. 2
V
SIZE:
C2-3230-ST-261
CV-028 CONVEYOR TRIPPER CAR CHUTE
C2-3230-CV-028
3230
07611
XA
+
C2-3230-TR-028
V V V
T4
T4
V
C2-3230-ST-261
V
SIZE: 2438 mm
MATERIAL:
MOTOR: 894.00 kW
C2-3230-CV-028
HPGR PRODUCT CONVEYOR NO.2 SIZE:
MOTOR:
C2-3230-TR-028
CV-028 TRIPPER CART
V
V
ES
V
C2-3230-ZE-015
V V V
D
4
F
B
A
3
2
1 5 6 8
E
7
C
REV.
APPROVED
CHK.
DES.
REV. DATE REVISION DESCRIPTION
CLIENT
LEAD ENGINEER
SCALE DRAWING NUMBER
CHECK DESIGN CHECK DRAWING
DESIGNED BY DRAWN BY
APPROVAL DATE
APPROVAL DATE
APPROVED
CHK.
DES.
REV. DATE REVISION DESCRIPTION REFERENCE DRAWING No.
1:100
0
1:200
5m
10m
0
5m
10m
15m
20m
1:500
10m
0
20m
30m
40m
50m
1:1000
0
100m
50m
1:20
0
0.5m
1m
1.5m
2m
0
1:25
0.5m
1m
1.5m
1:33
1/3
2.5m
2m
0
1m
2m
3m
0
1:50
1m
2m
3m
4m
5m
CAD FILE NAME: P:0CAD000SPEM**
MODEL UPDATED:
DWG. FILE UPDATED:
MANUAL CHANGES MADE: YES NO YES NO YES NO
PROJECT MANAGER
ENGINEERING MANAGER
AREA PROJECTENGINEER
REFERENCE DRAWINGS
SAFETY SHARE:
APPROVAL DATE
CONTRACT
NO.
SAFETY SHARE :
BA6CVA1.IGR
NOTICE: THIS DRAWING HAS NOT BEEN PUBLISHED AND IS THE SOLE
PROPERTY OF FLUOR AND IS LENT TO THE BORROWER FOR THEIR
CONFIDENTIAL USE ONLY, AND IN CONSIDERATION OF THE LOAN OF THIS
DRAWING, THE BORROWER PROMISES AND AGREES TO RETURN IT UPON
REQUEST AND AGREES THAT IT WILL NOT BE REPRODUCED, COPIED LENT
OR OTHERWISE DISPOSED OF DIRECTLY OR INDIRECTLY, NOR USED FOR
ANY OTHER PURPOSE OTHER THAN WHICH IT IS FURNISHED.
NONE
Apr 2011
240K-C2-
M
3230
07618
FE
+
3230
07618
FV
+
3230
07618
FIT
3230
07618
FIC
HH, P1
H, P2
L, P2
LL, P1
ES
2"
3230-WF- -C1A-2"-N
C2-3230-ZE-015
CV-028 SENSOR GUARD BELT RIP DETECTOR
3230
07651
VE
3230
07652
LE
3230
07642
LE
3230
07641
VE
3230
07641
VT
3230
07651
VT
3230
07652
LSL
3230
07642
LSL
3230
07642
LA
3230
07652
LA
3230
07651
VI
3230
07641
VI
H,P2
HH,P1
H,P2
HH,P1
L,P2
L,P2
A - G A - G
A - G
A - G
A
SENSOR GUARD
G
F
E
B
C
D
C2=3240-DC-045
ES
ES
D
4
F
B
A
3
2
1 5 6 8
E
7
C
REV.
APPROVED
CHK.
DES.
REV. DATE REVISION DESCRIPTION
CLIENT
LEAD ENGINEER
SCALE DRAWING NUMBER
CHECK DESIGN CHECK DRAWING
DESIGNED BY DRAWN BY
APPROVAL DATE
APPROVAL DATE
APPROVED
CHK.
DES.
REV. DATE REVISION DESCRIPTION REFERENCE DRAWING No.
1:100
0
1:200
5m
10m
0
5m
10m
15m
20m
1:500
10m
0
20m
30m
40m
50m
1:1000
0
100m
50m
1:20
0
0.5m
1m
1.5m
2m
0
1:25
0.5m
1m
1.5m
1:33
1/3
2.5m
2m
0
1m
2m
3m
0
1:50
1m
2m
3m
4m
5m
CAD FILE NAME: P:0CAD000SPEM**
MODEL UPDATED:
DWG. FILE UPDATED:
MANUAL CHANGES MADE: YES NO YES NO YES NO
PROJECT MANAGER
ENGINEERING MANAGER
AREA PROJECTENGINEER
REFERENCE DRAWINGS
SAFETY SHARE:
APPROVAL DATE
CONTRACT
NO.
SAFETY SHARE :
BA6CVA1.IGR
NOTICE: THIS DRAWING HAS NOT BEEN PUBLISHED AND IS THE SOLE
PROPERTY OF FLUOR AND IS LENT TO THE BORROWER FOR THEIR
CONFIDENTIAL USE ONLY, AND IN CONSIDERATION OF THE LOAN OF THIS
DRAWING, THE BORROWER PROMISES AND AGREES TO RETURN IT UPON
REQUEST AND AGREES THAT IT WILL NOT BE REPRODUCED, COPIED LENT
OR OTHERWISE DISPOSED OF DIRECTLY OR INDIRECTLY, NOR USED FOR
ANY OTHER PURPOSE OTHER THAN WHICH IT IS FURNISHED.
NONE
Apr 2011
240K-C2-
AG
KM
LT
ISSUED FOR CLIENT REVIEW
23-Dec-11
B
NOT USED
A
12/23/2011
K. MUNDY
A. GUNSON
T. OH
L. TAMELIN
1/3/2012
12:59:27
PM
WBS: 3230
B
PIPING AND INSTRUMENTATION DIAGRAM
TERTIARY CRUSHING
3200-25J-077
HPGR REJECT CONVEYOR NO. 1
HPGR REJECT CONVEYOR SYSTEM REMOVED.
THIS DWG RESERVED FOR FUTURE USE.
D
4
F
B
A
3
2
1 5 6 8
E
7
C
REV.
APPROVED
CHK.
DES.
REV. DATE REVISION DESCRIPTION
CLIENT
LEAD ENGINEER
SCALE DRAWING NUMBER
CHECK DESIGN CHECK DRAWING
DESIGNED BY DRAWN BY
APPROVAL DATE
APPROVAL DATE
APPROVED
CHK.
DES.
REV. DATE REVISION DESCRIPTION REFERENCE DRAWING No.
1:100
0
1:200
5m
10m
0
5m
10m
15m
20m
1:500
10m
0
20m
30m
40m
50m
1:1000
0
100m
50m
1:20
0
0.5m
1m
1.5m
2m
0
1:25
0.5m
1m
1.5m
1:33
1/3
2.5m
2m
0
1m
2m
3m
0
1:50
1m
2m
3m
4m
5m
CAD FILE NAME: P:0CAD000SPEM**
MODEL UPDATED:
DWG. FILE UPDATED:
MANUAL CHANGES MADE: YES NO YES NO YES NO
PROJECT MANAGER
ENGINEERING MANAGER
AREA PROJECTENGINEER
REFERENCE DRAWINGS
SAFETY SHARE:
APPROVAL DATE
CONTRACT
NO.
SAFETY SHARE :
BA6CVA1.IGR
NOTICE: THIS DRAWING HAS NOT BEEN PUBLISHED AND IS THE SOLE
PROPERTY OF FLUOR AND IS LENT TO THE BORROWER FOR THEIR
CONFIDENTIAL USE ONLY, AND IN CONSIDERATION OF THE LOAN OF THIS
DRAWING, THE BORROWER PROMISES AND AGREES TO RETURN IT UPON
REQUEST AND AGREES THAT IT WILL NOT BE REPRODUCED, COPIED LENT
OR OTHERWISE DISPOSED OF DIRECTLY OR INDIRECTLY, NOR USED FOR
ANY OTHER PURPOSE OTHER THAN WHICH IT IS FURNISHED.
NONE
Apr 2011
240K-C2-
AG
KM
LT
ISSUED FOR CLIENT REVIEW
23-Dec-11
B
NOT USED
A
12/23/2011
K. MUNDY
A. GUNSON
T. OH
L. TAMELIN
1/3/2012
12:59:05
PM
WBS: 3230
B
PIPING AND INSTRUMENTATION DIAGRAM
TERTIARY CRUSHING
3200-25J-078
HPGR REJECT CONVEYOR NO. 2
HPGR REJECT CONVEYOR SYSTEM REMOVED.
THIS DWG RESERVED FOR FUTURE USE.
D
4
F
B
A
3
2
1 5 6 8
E
7
C
REV.
APPROVED
CHK.
DES.
REV. DATE REVISION DESCRIPTION
CLIENT
LEAD ENGINEER
SCALE DRAWING NUMBER
CHECK DESIGN CHECK DRAWING
DESIGNED BY DRAWN BY
APPROVAL DATE
APPROVAL DATE
APPROVED
CHK.
DES.
REV. DATE REVISION DESCRIPTION REFERENCE DRAWING No.
1:100
0
1:200
5m
10m
0
5m
10m
15m
20m
1:500
10m
0
20m
30m
40m
50m
1:1000
0
100m
50m
1:20
0
0.5m
1m
1.5m
2m
0
1:25
0.5m
1m
1.5m
1:33
1/3
2.5m
2m
0
1m
2m
3m
0
1:50
1m
2m
3m
4m
5m
CAD FILE NAME: P:0CAD000SPEM**
MODEL UPDATED:
DWG. FILE UPDATED:
MANUAL CHANGES MADE: YES NO YES NO YES NO
PROJECT MANAGER
ENGINEERING MANAGER
AREA PROJECTENGINEER
REFERENCE DRAWINGS
SAFETY SHARE:
APPROVAL DATE
CONTRACT
NO.
SAFETY SHARE :
BA6CVA1.IGR
NOTICE: THIS DRAWING HAS NOT BEEN PUBLISHED AND IS THE SOLE
PROPERTY OF FLUOR AND IS LENT TO THE BORROWER FOR THEIR
CONFIDENTIAL USE ONLY, AND IN CONSIDERATION OF THE LOAN OF THIS
DRAWING, THE BORROWER PROMISES AND AGREES TO RETURN IT UPON
REQUEST AND AGREES THAT IT WILL NOT BE REPRODUCED, COPIED LENT
OR OTHERWISE DISPOSED OF DIRECTLY OR INDIRECTLY, NOR USED FOR
ANY OTHER PURPOSE OTHER THAN WHICH IT IS FURNISHED.
NONE
Apr 2011
240K-C2-
AG
KM
LT
ISSUED FOR CLIENT REVIEW
23-Dec-11
B
NOT USED
A
12/23/2011
K. MUNDY
A. GUNSON
T. OH
L. TAMELIN
1/3/2012
3:04:11
PM
WBS: 3230
B
PIPING AND INSTRUMENTATION DIAGRAM
TERTIARY CRUSHING
3200-25J-079
TERTIARY CRUSHER EFFLUENT
T3
AFD
T3
3230
07914
FI
3230
07915
PI L, P2
3230
07984
XA
3230
07902
LIC
3230
07984
HS
3230
07904
FI
3230
07902
LE
3230
07905
PI
3230
07914
FIT
3230
07985
XA
3230
07902
LIT
3230
07985
HS
M
M
3230
07984
II
3230
07904
FIT
3230
07901
FIT
3230
07901
FIC
M
3230
07915
PIT
3230
07985
II
3230
07905
PIT
L, P2
LL, P1 L, P2
L, P2
LL, P1
FAULT
AFD
J/SP
J/SP
FAULT
C2-3230-PP-059A
C2-3230-BX-030
SIZE:
MATERIAL:
MOTOR:
C2-3230-PP-059A
TERTIARY CRUSHING COOLING WATER RETURN PUMP NO.2
3"x2"
3"x2"
3230
07904
FE
+
2"x1-1/4"
2"x1-1/4"
SIZE:
MATERIAL:
CAPACITY:
TRIM:3230-SL-1010-C1B
C2-3230-BX-030
COOLING WATER RETURN PUMPBOX
C2-3230-PP-029A
3"x2"
3230
07914
FE
+
3230
07901
FV
+
3230
07901
FE
+
3"x2"
SIZE:
MATERIAL:
MOTOR:
C2-3230-PP-029A
TERTIARY CRUSHING COOLING WATER RETURN PUMP NO.1
ES
ES
ES
PROCESS WATER
3481 3900-25J-014
GLAND SEAL WATER
3479 3900-25J-023
C2-3230-PP-042
3230-SL-1014-C1B-6"-N
3230-WG-1033-C1A-2"-N
3230-WR-2007-C1A-3"-N
3230-SL-1013-C1A-6"-N
3230-WG-1031-C1A-2"-N
3230-SL-1790-C1B- -N
3230-SL-1791-C1B- -N
3230-SL-1788-C1B- -N
3230-SL-1789-C1B- -N
C2-3220-PP-032
C2-3240-BX-023
SLURRY
COARSE SCREENING
EFFLUENT PUMPBOX,
3672 3200-25J-019
SUMP CONTENTS
TERTIARY CRUSHING AREA
SUMP PUMP NORTH,
3671 3200-25J-049
C2-3230-PP-044
SUMP CONTENTS
SECONDARY CRUSHING AREA
SUM PUMP EAST,
1823 3200-25J-045
SUMP CONTENTS
SECONDARY CRUSHING AREA
SUMP PUMP WEST,
3647 3200-25J-046
C2-3220-PP-033
BELT WASH
CV-031 BELT CLEANER
STATION, C2-3240-ZM-019
3252 3200-25J-025
BELT WASH
CV-041 BELT CLEANER
STATION, C2-3240-ZM-029
3249 3200-25J-026
FRESH WATER
CRUSHING AREA HEAT
EXCHANGER NO.1 TO 3,
4003 3200-25J-082
C2-3230-773/774/775
3200-WF-1456-C1A-10"-N
3230-WF-1234-C1A-2"-N
3230-WF-1235-C1A-2"-N
3230-SL-1011-C1B-6"-N
3230-SL-1012-C1B-6"-N
3230-SL-
-C1B-
-N
SUMP CONTENTS
TERTIARY CRUSHING AREA
SUMP PUMP SOUTH,
2050 3200-25J-057
D
4
F
B
A
3
2
1 5 6 8
E
7
C
REV.
APPROVED
CHK.
DES.
REV. DATE REVISION DESCRIPTION
CLIENT
LEAD ENGINEER
SCALE DRAWING NUMBER
CHECK DESIGN CHECK DRAWING
DESIGNED BY DRAWN BY
APPROVAL DATE
APPROVAL DATE
APPROVED
CHK.
DES.
REV. DATE REVISION DESCRIPTION REFERENCE DRAWING No.
1:100
0
1:200
5m
10m
0
5m
10m
15m
20m
1:500
10m
0
20m
30m
40m
50m
1:1000
0
100m
50m
1:20
0
0.5m
1m
1.5m
2m
0
1:25
0.5m
1m
1.5m
1:33
1/3
2.5m
2m
0
1m
2m
3m
0
1:50
1m
2m
3m
4m
5m
CAD FILE NAME: P:0CAD000SPEM**
MODEL UPDATED:
DWG. FILE UPDATED:
MANUAL CHANGES MADE: YES NO YES NO YES NO
PROJECT MANAGER
ENGINEERING MANAGER
AREA PROJECTENGINEER
REFERENCE DRAWINGS
SAFETY SHARE:
APPROVAL DATE
CONTRACT
NO.
SAFETY SHARE :
BA6CVA1.IGR
NOTICE: THIS DRAWING HAS NOT BEEN PUBLISHED AND IS THE SOLE
PROPERTY OF FLUOR AND IS LENT TO THE BORROWER FOR THEIR
CONFIDENTIAL USE ONLY, AND IN CONSIDERATION OF THE LOAN OF THIS
DRAWING, THE BORROWER PROMISES AND AGREES TO RETURN IT UPON
REQUEST AND AGREES THAT IT WILL NOT BE REPRODUCED, COPIED LENT
OR OTHERWISE DISPOSED OF DIRECTLY OR INDIRECTLY, NOR USED FOR
ANY OTHER PURPOSE OTHER THAN WHICH IT IS FURNISHED.
NONE
Apr 2011
240K-C2-
AG
KM
LT
ISSUED FOR CLIENT REVIEW
23-Dec-11
B
NOT USED
A
12/23/2011
K.MUNDY
A.GUNSON
T. OH
L.TAMELIN
1/3/2012
12:57:32
PM
WBS: 3200
B
PIPING AND INSTRUMENTATION DIAGRAM
SECONDARY/TERTIARY CRUSHING AND CONVEYING
3200-25J-081
CLOSED COOLING SYSTEM SH. 2 OF 2
C2-3230-PP-768
C2-3230-PP-767
3200
08181
II
3200
08181
XA
SIZE:
MATERIAL:
MOTOR:
C2-3230-PP-768
CRUSHING COOLING SYSTEM PUMP NO. 2 (STAND BY)
SIZE:
MATERIAL:
MOTOR:
C2-3230-PP-767
CRUSHING COOLING SYSTEM PUMP NO. 1
3200
08181
HS
FAULT
J/SP
T1
T1
3200
08182
II
3200
08182
XA
3200
08182
HS
FAULT
J/SP
3230-WF-1464-C1A-6"-N
3230-WF-1227-C1A-6"-N
3200-WF-1456-C1A-6"-N
CLOSED LOOP CWS
CRUSHING AREA HEAT
EXCHANGER NO.1 TO 3,
3675 3200-25J-082
DOMESTIC WATER
DISTRIBUTION
3633 5400-25J-022
3230-WD-1040-G1A-2"-N
3230-WF-1463-C1A-8"-N
3230-WF-1467-C1A-10"-N
3230-WF-1466-C1A-10"-N
3200
08181
LE
3200
08101
LV
+
3200
08181
LIC
3200
08101
LIT
3230-WF-1465-C1A-8"-N
3230-WF-
-C1A-4"-N
3200
PCV
+
CLOSED LOOP CWS
DISTRIBUTION
4004 3200-25J-083
3230-WF-1227-C1A-6"-N
C2-3230-TK-766
SIZE:
MATERIAL:
CAPACITY:
TRIM:
C2-3230-TK-766
CRUSHER COOLING SYSTEM TANK
C2-3230-HX-773/774/775
WATER
TREATMENT
DOSING
SYSTEM
VENDOR SUPPLY
FLUOR
VENDOR
3200-RE- -S1A-1"-N
3200
08212
PDI
3200
08212 A
PI
3200
08212 B
PI
HH
3200
08212 A
PIT
3200
08212 B
PIT
M
3200
08206
TI
3200
08211
FIT
3200
08211
FI
3200
08215
ZS
OP/CL
3200
08215
XA
MISMATCH
3200
08213
TI
3200
08207
TE
3200
08207
TIT
3200
08207
TIC
3200
08218
AE
3200
08218
AI
3200
08218
AIT
3200
08228
AE
3200
08222
PIT
3200
08222 B
PIT
3200
08225
ZS
OP/CL
M
3200
08202
PDI
3200
08202 B
PI
HH
3200
08202 A
PI
3200
08208
AIT
3200
08201
FIT
3200
08201
FI
3200
08205
XA
MISMATCH
3200
08216
TI
3200
08208
AI
M
3200
08222
PDI
3200
08222 B
PI
HH
3200
08203
TI
3200
08208
AE
3200
08202 A
PIT
3200
08202 B
PIT
3200
08222
PI
3200
08205
ZS
OP/CL
3200
08228
AIT
3200
08221
FIT
3200
08221
FI
3200
08225
XA
MISMATCH
3200
08226
TI
3200
08228
AI
3200
08223
TI
H
H
H
CLOSED LOOP CWS
CRUSHING COOLING SYSTEM
TANK, C2-3230-TK-766
3675 3200-25J-081
FRESH WATER
HEADER
3683 5100-25J-014
FRESH WATER
HPGR PRODUCTION
CONVEYOR, C2-3230-CV-018
3489 3200-25J-075
FRESH WATER
HPGR PRODUCTION
CONVEYOR, C2-3230-CV-028
3490 3200-25J-076
CLOSED LOOP CWR
HEADER
4005 3200-25J-084
TW
TW
CV
TW
H
CONV
CONV
TW
NOTES:
1. ALL INSTRUMENTS BY VENDOR.
TW
CV
CONV
TW
SEL
TW
CV
6"x4"
1"
5100-WF- -C1A-10"-N
3200-WF- -C1A-6"-N
1"
1"
8"x10"
6"x4"
1"
1"
V
3230-WF-1461-C1A-2"-N
3230-WF- -C1A-2"-N
3"x2"
3230-WF-1457-C1A-10"-N
1"
1"
1"
1"
1"
1"
1"
3230-WF-1453-C1A-4"-N
3230-WF-1452-C1A-8"-N
1"
1"
3230-WF-1454-C1A-4"-N
3230-WF-1451-C1A-4"-N
3230-WF-1450-C1A-8"-N
3230-WF-1456-C1A-6"-N
AG
KM
LT
ISSUED FOR CLIENT REVIEW
23-Dec-11
B
NOT USED
A
12/23/2011
K.MUNDY
A.GUNSON
T. OH
L.TAMELIN
1/3/2012
12:55:29
PM
WBS: 3200
B
PIPING AND INSTRUMENTATION DIAGRAM
SECONDARY/TERTIARY CRUSHING AND CONVEYING
3200-25J-082
CLOSED COOLING SYSTEM SH. 1 OF 2
C2-3230-HX-774
SIZE:
MOTOR:
C2-3230-HX-774
CRUSHING AREA HEAT EXCHANGER NO.2
3200
08224
PSV
+
3230-WF- -C1A-1"-N
C2-3230-HX-775
VENT
3200
08225
XV
+
DRAIN
3230-WF-1458-C1A-4"-N
DRAIN
3200
08207 C
TV
+
VENT
DRAIN
3200
08214
PSV
+
PSET=
3230-WF- -C1A-1"-N
VENT
3200
08211
FE
+
3230-WF-1456-C1A-4"-N
3230-WF-1457-C1A-8"-N
DRAIN DRAIN
FI
3200
08215
XV
+
3200
08207 B
TV
+
FO
FI
VENT
FO
3200-WF- -C1A-1"-N
VENT
3200
08205
XV
+
DRAIN
3230-WF-1454-C1A-4"-N
DRAIN
3200
08201
FE
+
PSET=
DRAIN
3200
08204
PSV
+
C2-3230-HX-773
3200
08207 A
TV
+
3230-WF-1455-C1A-8"-N
SIZE:
MOTOR:
C2-3230-HX-773
CRUSHING AREA HEAT EXCHANGER NO.1
FI
VENT
FO
1"
10"x8"
3200
08221
FE
+
PSET=
3230-WF-1459-C1A-8"-N
DRAIN
SIZE:
MOTOR:
C2-3230-HX-775
CRUSHING AREA HEAT EXCHANGER NO.3
D
4
F
B
A
3
2
1 5 6 8
E
7
C
REV.
APPROVED
CHK.
DES.
REV. DATE REVISION DESCRIPTION
CLIENT
LEAD ENGINEER
SCALE DRAWING NUMBER
CHECK DESIGN CHECK DRAWING
DESIGNED BY DRAWN BY
APPROVAL DATE
APPROVAL DATE
APPROVED
CHK.
DES.
REV. DATE REVISION DESCRIPTION REFERENCE DRAWING No.
1:100
0
1:200
5m
10m
0
5m
10m
15m
20m
1:500
10m
0
20m
30m
40m
50m
1:1000
0
100m
50m
1:20
0
0.5m
1m
1.5m
2m
0
1:25
0.5m
1m
1.5m
1:33
1/3
2.5m
2m
0
1m
2m
3m
0
1:50
1m
2m
3m
4m
5m
CAD FILE NAME: P:0CAD000SPEM**
MODEL UPDATED:
DWG. FILE UPDATED:
MANUAL CHANGES MADE: YES NO YES NO YES NO
PROJECT MANAGER
ENGINEERING MANAGER
AREA PROJECTENGINEER
REFERENCE DRAWINGS
SAFETY SHARE:
APPROVAL DATE
CONTRACT
NO.
SAFETY SHARE :
BA6CVA1.IGR
NOTICE: THIS DRAWING HAS NOT BEEN PUBLISHED AND IS THE SOLE
PROPERTY OF FLUOR AND IS LENT TO THE BORROWER FOR THEIR
CONFIDENTIAL USE ONLY, AND IN CONSIDERATION OF THE LOAN OF THIS
DRAWING, THE BORROWER PROMISES AND AGREES TO RETURN IT UPON
REQUEST AND AGREES THAT IT WILL NOT BE REPRODUCED, COPIED LENT
OR OTHERWISE DISPOSED OF DIRECTLY OR INDIRECTLY, NOR USED FOR
ANY OTHER PURPOSE OTHER THAN WHICH IT IS FURNISHED.
NONE
Apr 2011
240K-C2-
(NOTE 1)
FRESH WATER
COOLING WATER RETURN
PUMPBOX, C2-3230-BX-030
4003 3200-25J-079
D
4
F
B
A
3
2
1 5 6 8
E
7
C
REV.
APPROVED
CHK.
DES.
REV. DATE REVISION DESCRIPTION
CLIENT
LEAD ENGINEER
SCALE DRAWING NUMBER
CHECK DESIGN CHECK DRAWING
DESIGNED BY DRAWN BY
APPROVAL DATE
APPROVAL DATE
APPROVED
CHK.
DES.
REV. DATE REVISION DESCRIPTION REFERENCE DRAWING No.
1:100
0
1:200
5m
10m
0
5m
10m
15m
20m
1:500
10m
0
20m
30m
40m
50m
1:1000
0
100m
50m
1:20
0
0.5m
1m
1.5m
2m
0
1:25
0.5m
1m
1.5m
1:33
1/3
2.5m
2m
0
1m
2m
3m
0
1:50
1m
2m
3m
4m
5m
CAD FILE NAME: P:0CAD000SPEM**
MODEL UPDATED:
DWG. FILE UPDATED:
MANUAL CHANGES MADE: YES NO YES NO YES NO
PROJECT MANAGER
ENGINEERING MANAGER
AREA PROJECTENGINEER
REFERENCE DRAWINGS
SAFETY SHARE:
APPROVAL DATE
CONTRACT
NO.
SAFETY SHARE :
BA6CVA1.IGR
NOTICE: THIS DRAWING HAS NOT BEEN PUBLISHED AND IS THE SOLE
PROPERTY OF FLUOR AND IS LENT TO THE BORROWER FOR THEIR
CONFIDENTIAL USE ONLY, AND IN CONSIDERATION OF THE LOAN OF THIS
DRAWING, THE BORROWER PROMISES AND AGREES TO RETURN IT UPON
REQUEST AND AGREES THAT IT WILL NOT BE REPRODUCED, COPIED LENT
OR OTHERWISE DISPOSED OF DIRECTLY OR INDIRECTLY, NOR USED FOR
ANY OTHER PURPOSE OTHER THAN WHICH IT IS FURNISHED.
NONE
Apr 2011
240K-C2-
COOLING WATER SYSTEM
PLANT AIR COMPRESSOR,
C2-3220-CO-021/022
2978 3200-25J-017
COOLING WATER SYSTEM
FIXED ROLL CONTROLS,
C2-3230-CR-015
3082 3200-25J-065
COOLING WATER SYSTEM
FIXED ROLL CONTROLS,
C2-3230-CR-016
3107 3200-25J-066
COOLING WATER SYSTEM
FIXED ROLL CONTROLS,
C2-3230-CR-017
3110 3200-25J-067
COOLING WATER SYSTEM
FIXED ROLL CONTROLS,
C2-3230-CR-018
3113 3200-25J-068
COOLING WATER SYSTEM
FIXED ROLL CONTROLS,
C2-3230-CR-025
3117 3200-25J-069
COOLING WATER SYSTEM
FIXED ROLL CONTROLS,
C2-3230-CR-026
3120 3200-25J-070
COOLING WATER SYSTEM
FIXED ROLL CONTROLS,
C2-3230-CR-027
3123 3200-25J-071
COOLING WATER SYSTEM
AFD FIXED ROLL,
C2-3230-CR-028
3126 3200-25J-072
CLOSED LOOP CWS
C2-3230-PP-767/768
4004 3200-25J-081
COOLING WATER SYSTEM
ROLL CONTROLS,
C2-3230-CR-015
4007 3200-25J-065
COOLING WATER SYSTEM
ROLL CONTROLS,
C2-3230-CR-015
4008 3200-25J-065
COOLING WATER SYSTEM
MOVEABLE ROLL CONTROLS,
C2-3230-CR-015
4009 3200-25J-065
COOLING WATER SYSTEM
AFD MOVEABLE ROLL,
C2-3230-CR-015
4010 3200-25J-065
COOLING WATER SYSTEM
AFD FIXED ROLL,
C2-3230-CR-015
4011 3200-25J-065
COOLING WATER SYSTEM
AFD FIXED ROLL,
C2-3230-CR-016
4017 3200-25J-066
COOLING WATER SYSTEM
AFD MOVEABLE ROLL,
C2-3230-CR-016
4018 3200-25J-066
COOLING WATER SYSTEM
MOVEABLE ROLL CONTROLS,
C2-3230-CR-016
4019 3200-25J-066
COOLING WATER SYSTEM
ROLL CONTROLS,
3230-CR-016
4020 3200-25J-066
COOLING WATER SYSTEM
ROLL CONTROLS,
3230-CR-016
4022 3200-25J-066
COOLING WATER SYSTEM
AFD FIXED ROLL,
C2-3230-CR-017
4029 3200-25J-067
COOLING WATER SYSTEM
ROLL CONTROLS,
C2-3230-CR-017
4031 3200-25J-067
COOLING WATER SYSTEM
ROLL CONTROLS,
C2-3230-CR-017
4032 3200-25J-067
COOLING WATER SYSTEM
MOVEABLE ROLL CONTROLS,
C2-3230-CR-017
4033 3200-25J-067
COOLING WATER SYSTEM
AFD MOVEABLE ROLL,
C2-3230-CR-017
4036 3200-25J-067
COOLING WATER SYSTEM
ROLL CONTROLS,
C2-3230-CR-018
4041 3200-25J-068
COOLING WATER SYSTEM
AFD MOVEABLE ROLL,
C2-3230-CR-018
4042 3200-25J-068
COOLING WATER SYSTEM
MOVEABLE ROLL CONTROLS,
C2-3230-CR-018
4043 3200-25J-068
COOLING WATER SYSTEM
ROLL CONTROLS,
C2-3230-CR-018
4046 3200-25J-068
COOLING WATER SYSTEM
AFD FIXED ROLL,
C2-3230-CR-018
4047 3200-25J-068
COOLING WATER SYSTEM
ROLL CONTROLS,
C2-3230-CR-025
4049 3200-25J-069
COOLING WATER SYSTEM
AFD MOVEABLE ROLL,
C2-3230-CR-025
4050 3200-25J-069
COOLING WATER SYSTEM
MOVEABLE ROLL CONTROLS,
C2-3230-CR-025
4051 3200-25J-069
COOLING WATER SYSTEM
ROLL CONTROLS,
C2-3230-CR-025
4055 3200-25J-069
COOLING WATER SYSTEM
AFD FIXED ROLL,
C2-3230-CR-025
4056 3200-25J-069
COOLING WATER SYSTEM
ROLL CONTROLS,
C2-3230-CR-026
4061 3200-25J-070
COOLING WATER SYSTEM
ROLL CONTROLS,
C2-3230-CR-026
4062 3200-25J-070
COOLING WATER SYSTEM
AFD MOVEABLE ROLL,
C2-3230-CR-026
4063 3200-25J-070
COOLING WATER SYSTEM
MOVEABLE ROLL CONTROLS,
C2-3230-CR-026
4066 3200-25J-070
COOLING WATER SYSTEM
AFD FIXED ROLL,
C2-3230-CR-026
4068 3200-25J-070
COOLING WATER SYSTEM
ROLL CONTROLS,
C2-3230-CR-027
4069 3200-25J-071
COOLING WATER SYSTEM
MOVEABLE ROLL CONTROLS,
C2-3230-CR-027
4070 3200-25J-071
COOLING WATER SYSTEM
ROLL CONTROLS,
C2-3230-CR-027
4073 3200-25J-071
COOLING WATER SYSTEM
AFD FIXED ROLL,
C2-3230-CR-027
4075 3200-25J-071
COOLING WATER SYSTEM
AFD MOVEABLE ROLL,
C2-3230-CR-027
4076 3200-25J-071
COOLING WATER SYSTEM
ROLL CONTROLS,
C2-3230-CR-028
4079 3200-25J-072
COOLING WATER SYSTEM
ROLL CONTROLS,
C2-3230-CR-028
4080 3200-25J-072
COOLING WATER SYSTEM
FIXED ROLL CONTROLS,
C2-3230-CR-028
4081 3200-25J-072
COOLING WATER SYSTEM
MOVEABLE ROLL CONTROLS,
C2-3230-CR-028
4086 3200-25J-072
COOLING WATER SYSTEM
AFD MOVEABLE ROLL,
C2-3230-CR-028
4087 3200-25J-072
3230-WF-1227-C1A-6"-N
AG
KM
LT
ISSUED FOR CLIENT REVIEW
25-Jan-12
B
NOT USED
A
1/25/2012
K.MUNDY
A.GUNSON
T. OH
L.TAMELIN
1/25/2012
1:33:51
PM
WBS: 3200
B
PIPING AND INSTRUMENTATION DIAGRAM
SECONDARY/TERTIARY CRUSHING AND CONVEYING
3200-25J-083
CLOSED LOOP COOLING WATER SYSTEM DIS.
3230-WF-1244-C1A-2"-N
3230-WF-1245-C1A-2"-N
3230-WF-1249-C1A-2"-N
3230-WF-1247-C1A-2"-N
3230-WF-1248-C1A-1-1/2"-N
3230-WF-1246-C1A-1-1/2"-N
3230-WF-1181-C1A-4"-N
3230-WF-1256-C1A-2"-N
3230-WF-1257-C1A-2"-N
3230-WF-1261-C1A-2"-N
3230-WF-1259-C1A-2"-N
3230-WF-1260-C1A-1-1/2"-N
3230-WF-1258-C1A-1-1/2"-N
3230-WF-1268-C1A-2"-N
3230-WF-1269-C1A-2"-N
3230-WF-1273-C1A-2"-N
3230-WF-1271-C1A-2"-N
3230-WF-1272-C1A-1-1/2"-N
3230-WF-1270-C1A-1-1/2"-N
3230-WF-1282-C1A-1-1/2"-N
3230-WF-1284-C1A-1-1/2"-N
3230-WF-1283-C1A-2"-N
3230-WF-1285-C1A-2"-N
3230-WF-1281-C1A-2"-N
3230-WF-1280-C1A-2"-N
3230-WF-1294-C1A-1-1/2"-N
3230-WF-1296-C1A-1-1/2"-N
3230-WF-1295-C1A-2"-N
3230-WF-1297-C1A-2"-N
3230-WF-1293-C1A-2"-N
3230-WF-1292-C1A-2"-N
3230-WF-1304-C1A-2"-N
3230-WF-1305-C1A-2"-N
3230-WF-1309-C1A-2"-N
3230-WF-1307-C1A-2"-N
3230-WF-1308-C1A-1-1/2"-N
3230-WF-1306-C1A-1-1/2"-N
3230-WF-1316-C1A-2"-N
3230-WF-1317-C1A-2"-N
3230-WF-1321-C1A-2"-N
3230-WF-1319-C1A-2"-N
3230-WF-1320-C1A-1-1/2"-N
3230-WF-1318-C1A-1-1/2"-N
3230-WF-1328-C1A-2"-N
3230-WF-1329-C1A-2"-N
3230-WF-1333-C1A-2"-N
3230-WF-1331-C1A-2"-N
3230-WF-1332-C1A-1-1/2"-N
3230-WF-1330-C1A-1-1/2"-N
D
4
F
B
A
3
2
1 5 6 8
E
7
C
REV.
APPROVED
CHK.
DES.
REV. DATE REVISION DESCRIPTION
CLIENT
LEAD ENGINEER
SCALE DRAWING NUMBER
CHECK DESIGN CHECK DRAWING
DESIGNED BY DRAWN BY
APPROVAL DATE
APPROVAL DATE
APPROVED
CHK.
DES.
REV. DATE REVISION DESCRIPTION REFERENCE DRAWING No.
1:100
0
1:200
5m
10m
0
5m
10m
15m
20m
1:500
10m
0
20m
30m
40m
50m
1:1000
0
100m
50m
1:20
0
0.5m
1m
1.5m
2m
0
1:25
0.5m
1m
1.5m
1:33
1/3
2.5m
2m
0
1m
2m
3m
0
1:50
1m
2m
3m
4m
5m
CAD FILE NAME: P:0CAD000SPEM**
MODEL UPDATED:
DWG. FILE UPDATED:
MANUAL CHANGES MADE: YES NO YES NO YES NO
PROJECT MANAGER
ENGINEERING MANAGER
AREA PROJECTENGINEER
REFERENCE DRAWINGS
SAFETY SHARE:
APPROVAL DATE
CONTRACT
NO.
SAFETY SHARE :
BA6CVA1.IGR
NOTICE: THIS DRAWING HAS NOT BEEN PUBLISHED AND IS THE SOLE
PROPERTY OF FLUOR AND IS LENT TO THE BORROWER FOR THEIR
CONFIDENTIAL USE ONLY, AND IN CONSIDERATION OF THE LOAN OF THIS
DRAWING, THE BORROWER PROMISES AND AGREES TO RETURN IT UPON
REQUEST AND AGREES THAT IT WILL NOT BE REPRODUCED, COPIED LENT
OR OTHERWISE DISPOSED OF DIRECTLY OR INDIRECTLY, NOR USED FOR
ANY OTHER PURPOSE OTHER THAN WHICH IT IS FURNISHED.
NONE
Apr 2011
240K-C2-
AG
KM
LT
ISSUED FOR CLIENT REVIEW
25-Jan-12
B
NOT USED
A
1/25/2012
K. MUNDY
A. GUNSON
T. OH
L. TAMELIN
1/25/2012
9:19:34
AM
WBS: 3200
B
PIPING AND INSTRUMENTATION DIAGRAM
SECONDARY/TERTIARY CRUSHING AND CONVEYING
3200-25J-084
CLOSED LOOP COOLING WATER SYSTEM
COOLING WATER RETURN
HPGR NO. 1 LUBE SYSTEM
CR-015 FIXED ROLL
3078 3200-25J-065
COOLING WATER RETURN
HPGR NO. 2 LUBE SYSTEM
CR-016 FIXED ROLL
3108 3200-25J-066
COOLING WATER RETURN
HPGR NO. 3 LUBE SYSTEM
CR-017 FIXED ROLL
3111 3200-25J-067
COOLING WATER RETURN
HPGR NO. 4 LUBE SYSTEM
CR-018 FIXED ROLL
3114 3200-25J-068
COOLING WATER RETURN
HPGR NO. 5 LUBE SYSTEM
CR-025 FIXED ROLL
3118 3200-25J-069
COOLING WATER RETURN
HPGR NO. 6 LUBE SYSTEM
CR-026 FIXED ROLL
3121 3200-25J-070
COOLING WATER RETURN
HPGR NO. 7 LUBE SYSTEM
CR-027 FIXED ROLL
3124 3200-25J-071
COOLING WATER RETURN
HPGR NO. 8 LUBE SYSTEM
CR-028 FIXED ROLL
3127 3200-25J-072
PLANT AIR
PLANT AIR COMPRESSOR,
C2-3220-CO-021/022
3425 3200-25J-017
COOLING WATER RETURN
CRUSHING AREA HEAT
EXCHANGERS,
4005 3200-25J-082
COOLING WATER RETURN
HPGR NO. 1 LUBE SYSTEM
CR-015 ROLL CONTROLS
4012 3200-25J-065
COOLING WATER RETURN
HPGR NO. 1 LUBE SYSTEM
CR-015 MOVABLE ROLL
4013 3200-25J-065
COOLING WATER RETURN
HPGR NO. 1 LUBE SYSTEM
CR-015 AFD MOVABLE ROLL
4014 3200-25J-065
COOLING WATER RETURN
HPGR NO. 1 LUBE SYSTEM
CR-015 AFD FIXED ROLL
4015 3200-25J-065
COOLING WATER RETURN
HPGR NO. 1 LUBE SYSTEM
CR-015 ROLL CONTROLS
4016 3200-25J-065
COOLING WATER RETURN
HPGR NO. 2 LUBE SYSTEM
CR-016 ROLL CONTROLS
4023 3200-25J-066
COOLING WATER RETURN
HPGR NO. 2 LUBE SYSTEM
CR-016 AFD FIXED ROLL
4024 3200-25J-066
COOLING WATER RETURN
HPGR NO. 2 LUBE SYSTEM
CR-016 AFD MOVABLE ROLL
4025 3200-25J-066
COOLING WATER RETURN
HPGR NO. 2 LUBE SYSTEM
CR-016 MOVABLE ROLL
4026 3200-25J-066
COOLING WATER RETURN
HPGR NO. 2 LUBE SYSTEM
CR-016 ROLL CONTROLS
4028 3200-25J-066
COOLING WATER RETURN
HPGR NO. 3 LUBE SYSTEM
CR-017 AFD FIXED ROLL
4030 3200-25J-067
COOLING WATER RETURN
HPGR NO. 3 LUBE SYSTEM
CR-017 AFD MOVABLE ROLL
4034 3200-25J-067
COOLING WATER RETURN
HPGR NO. 3 LUBE SYSTEM
CR-017 ROLL CONTROLS
4035 3200-25J-067
COOLING WATER RETURN
HPGR NO. 3 LUBE SYSTEM
CR-017 ROLL CONTROLS
4037 3200-25J-067
COOLING WATER RETURN
HPGR NO. 3 LUBE SYSTEM
CR-017 MOVABLE ROLL
4038 3200-25J-067
COOLING WATER RETURN
HPGR NO. 4 LUBE SYSTEM
CR-018 MOVABLE ROLL
4039 3200-25J-068
COOLING WATER RETURN
HPGR NO. 4 LUBE SYSTEM
CR-018 ROLL CONTROLS
4040 3200-25J-068
COOLING WATER RETURN
HPGR NO. 4 LUBE SYSTEM
CR-018 AFD FIXED ROLL
4044 3200-25J-068
COOLING WATER RETURN
HPGR NO. 4 LUBE SYSTEM
CR-018 AFD MOVABLE ROLL
4045 3200-25J-068
COOLING WATER RETURN
HPGR NO. 4 LUBE SYSTEM
CR-018 ROLL CONTROLS
4048 3200-25J-068
COOLING WATER RETURN
HPGR NO. 5 LUBE SYSTEM
CR-025 ROLL CONTROLS
4052 3200-25J-069
COOLING WATER RETURN
HPGR NO. 5 LUBE SYSTEM
CR-025 AFD MOVABLE ROLL
4053 3200-25J-069
COOLING WATER RETURN
HPGR NO. 5 LUBE SYSTEM
CR-025 ROLL CONTROLS
4054 3200-25J-069
COOLING WATER RETURN
HPGR NO. 5 LUBE SYSTEM
CR-025 AFD FIXED ROLL
4057 3200-25J-069
COOLING WATER RETURN
HPGR NO. 5 LUBE SYSTEM
CR-025 MOVABLE ROLL
4058 3200-25J-069
COOLING WATER RETURN
HPGR NO. 6 LUBE SYSTEM
CR-026 ROLL CONTROLS
4059 3200-25J-070
COOLING WATER RETURN
HPGR NO. 6 LUBE SYSTEM
CR-026 MOVABLE ROLL
4060 3200-25J-070
COOLING WATER RETURN
HPGR NO. 6 LUBE SYSTEM
CR-026 AFD FIXED ROLL
4064 3200-25J-070
COOLING WATER RETURN
HPGR NO. 6 LUBE SYSTEM
CR-026 ROLL CONTROLS
4065 3200-25J-070
COOLING WATER RETURN
HPGR NO. 6 LUBE SYSTEM
CR-026 AFD MOVABLE ROLL
4067 3200-25J-070
COOLING WATER RETURN
HPGR NO. 7 LUBE SYSTEM
CR-027 AFD FIXED ROLL
4071 3200-25J-071
COOLING WATER RETURN
HPGR NO. 7 LUBE SYSTEM
CR-027 MOVABLE ROLL
4072 3200-25J-071
COOLING WATER RETURN
HPGR NO. 7 LUBE SYSTEM
CR-027 ROLL CONTROLS
4074 3200-25J-071
COOLING WATER RETURN
HPGR NO. 7 LUBE SYSTEM
CR-027 ROLL CONTROLS
4077 3200-25J-071
COOLING WATER RETURN
HPGR NO. 7 LUBE SYSTEM
CR-027 AFD MOVABLE ROLL
4078 3200-25J-071
COOLING WATER RETURN
HPGR NO. 8 LUBE SYSTEM
CR-028 ROLL CONTROLS
4082 3200-25J-072
COOLING WATER RETURN
HPGR NO. 8 LUBE SYSTEM
CR-028 AFD FIXED ROLL
4083 3200-25J-072
COOLING WATER RETURN
HPGR NO. 8 LUBE SYSTEM
CR-028 AFD MOVABLE ROLL
4084 3200-25J-072
COOLING WATER RETURN
HPGR NO. 8 LUBE SYSTEM
CR-028 MOVABLE ROLL
4085 3200-25J-072
COOLING WATER RETURN
HPGR NO. 8 LUBE SYSTEM
CR-028 ROLL CONTROLS
4088 3200-25J-072
3230-WF-1303-C1A-1-1/2"-N
3230-WF-1302-C1A-2"-N
3230-WF-1290-C1A-2"-N
3230-WF-1291-C1A-1-1/2"-N
3230-WF-1288-C1A-1-1/2"-N
3230-WF-1289-C1A-2"-N
3230-WF-1287-C1A-2"-N
3230-WF-1275-C1A-2"-N
3230-WF-1278-C1A-2"-N
3230-WF-1277-C1A-2"-N
3230-WF-1279-C1A-1-1/2"-N
3230-WF-1276-C1A-1-1/2"-N
3230-WF-1266-C1A-2"-N
3230-WF-1263-C1A-2"-N
3230-WF-1267-C1A-1-1/2"-N
3230-WF-1337-C1A-2"-N
3230-WF-1335-C1A-2"-N
3230-WF-1264-C1A-1-1/2"-N
3230-WF-1265-C1A-2"-N
3230-WF-1254-C1A-2"-N
3230-WF-1252-C1A-1-1/2"-N
3230-WF-1255-C1A-1-1/2"-N
3230-WF-1251-C1A-2"-N
3230-WF-1253-C1A-2"-N
3230-WF-1649-C1A-6"-N
3230-WF-1324-C1A-1-1/2"-N
3230-WF-1323-C1A-2"-N
3230-WF-1325-C1A-2"-N
3230-WF-1326-C1A-2"-N
3230-WF-1327-C1A-1-1/2"-N
3230-WF-1338-C1A-2"-N
3230-WF-1336-C1A-1-1/2"-N
3230-WF-1339-C1A-1-1/2"-N
3230-WF-1334-C1A-2"-N
3230-WF-1322-C1A-2"-N
3230-WF-1310-C1A-2"-N
3230-WF-1298-C1A-2"-N
3230-WF-1286-C1A-2"-N
3230-WF-1274-C1A-2"-N
3230-WF-1262-C1A-2"-N
3230-WF-1250-C1A-2"-N
3230-WF-1301-C1A-2"-N
3230-WF-1300-C1A-1-1/2"-N
3230-WF-1299-C1A-2"-N
3230-WF-1314-C1A-2"-N
3230-WF-1311-C1A-2"-N
3230-WF-1312-C1A-1-1/2"-N
3230-WF-1313-C1A-2"-N
3230-WF-1315-C1A-1-1/2"-N
3220-WF-1232-C1A-4"-N
C2-3230-HX-773/774/775
V
M
LHS
3310
00192
XA
3310
00105
ZSH
3310
00105
ZSH
3310
00123 A
SI
3310
00104
ZSH
3310
00104
ZSH
3310
00137
LAL
3310
00137
LSL
3310
00181
HS
3310
00115 A
LAH
3310
00115 A
LSH
3310
00116 A
LI
3310
00116
LIT
3310
00116
LI
3310
00116
LE
3310
00117
LAL
3310
00117
LSL
3310
00136 A
LI
3310
00126 A
TI HH, P1
H, P2
3310
00192
HS
J/SP
3310
00136
LIT
3310
00181
XA
3310
00126 A
TE
3310
00130
WIT
3310
00124
ZAH
3310
00130
WE
3310
00123 A
ST
3310
00123 A
SE
3310
00127 B
TE
3310
00136
LE
3310
00103 A
SI
3310
00107 B
TE
3310
00103 B
SE
3310
00182
II
3310
00106 B
TI HH, P1
H, P2
3310
00108
XA P1
3310
00106 B
TE
3310
00106 A
TI HH, P1
H, P2
3310
00102
HSA
3310
00126 B
TI
3310
00106 A
TE
3310
00108 B
XS
3310
00104
ZSHH
LHS
3310
00108 A
XS
3310
00105
ZSHH
C,D
RHS
3310
00105
ZSHH
3310
00103 A
ST
3310
00101
HSS
3310
00103 B
ST
3310
00103
SDI
3310
00126 B
TE
3310
00135 A
LAH
3310
00125
ZAH
P1
3310
00122
HSA
LHS
3310
00181
II
3310
00136
LI
HH, P1
H, P2
L, P2
3310
00102
HSS
RHS
3310
00103 B
SI
3310
00107 B
TI HH, P1
H, P2
3310
00104
ZAHH
3310
00103 A
SE
3310
00105
ZAHH
3310
00182 H
TI
BRG
REAR
H,P2
HH,P1
3310
00107 A
TI HH, P1
H, P2
3310
00182 G
TI
BRG
FRONT
H,P2
HH,P1
3310
00107 A
TE
3310
00182 G
TE
3310
00121
HSA
3310
00135 A
LSH
3310
00121
HSS
3310
00125
ZSHH
A,B
3310
00122
HSS
RHS
3310
00125
ZSH
3310
00124
ZSHH
3310
00192
II
3310
00124
ZSH
LHS
A,B
3310
00104
ZSHH
LHS
3310
00182
XA
3310
00101
HSA
3310
00182 H
TE
3310
00127 A
TI
HH, P1
H, P2
3310
00127 A
TE
3310
00127 B
TI
3310
00130
WI
TERTIARY CRUSHER
BALL MILL SCREEN FEEDER
C2-3310-FE-102
1289 3300-25J-002
PLANT AIR
1372 3900-25J-022
TERTIARY CRUSHER
HPGR PRODUCT CONVEYOR
NO. 1, C2-3230-CV-018
1291 3200-25J-075
WATER RATIO CONTROLLER,
3310-FFFIC-00301
1293 3300-25J-003
TERTIARY CRUSHER
BALL MILL SCREEN FEED BOX
C2-3310-BX-107
1294 3300-25J-003
P1
A,B
P1
A-B RHS
TEAR
A,B C,D
RHS
A,B
P1
LHS
A,B
P1
RHS
RHS
H, P1
LHS
P1
A-B
LHS
A,B
P1
P1
A,B
LHS
A,B
H, P1
RHS
HH, P1
H, P2
HH, P1
H, P2
RHS
P2
A,B
A,B
RHS
A,B
FAULT
FAULT
P1
J/SP
HH, P1
H, P2
L, P2
P1
A,B
C2-3310-DC-173
C2-3310-ST-102
C2-3310-ST-101
C2-3310-ST-103
C2-3310-FA-173
C2-3310-ST-331
C2-3310-SL-111
C2-3310-FE-101
C2-3310-CV-060
3310
00131
XA
+
3310-AP-1074-C1A-2"-N
C2-3310-BN-101
SIZE:
C2-3310-DC-173
BALL MILL FEED BIN DUST COLLECTOR (DRY)
SIZE:
C2-3310-BN-101
BALL MILL FEED SURGE BIN
SIZE:
C2-3310-ST-101
BALL MILL SCREEN FEEDER SKIRT
SIZE:
C2-3310-ST-102
BALL MILL SCREEN FEEDER SKIRT
SIZE:
C2-3310-ST-103
BALL MILL SCREEN FEED CHUTE
SIZE:
C2-3310-SL-111
BALL MILL SCREEN FEEDER BELT SCALE
SIZE:
C2-3310-ST-331
BALL MILL SCREEN FEED CONVEYOR HEAD CHUTE
TO ATMOSPHERE
D
4
F
B
A
3
2
1 5 6 8
E
7
C
REV.
APPROVED
CHK.
DES.
REV. DATE REVISION DESCRIPTION
CLIENT
LEAD ENGINEER
SCALE DRAWING NUMBER
CHECK DESIGN CHECK DRAWING
DESIGNED BY DRAWN BY
APPROVAL DATE
APPROVAL DATE
APPROVED
CHK.
DES.
REV. DATE REVISION DESCRIPTION REFERENCE DRAWING No.
1:100
0
1:200
5m
10m
0
5m
10m
15m
20m
1:500
10m
0
20m
30m
40m
50m
1:1000
0
100m
50m
1:20
0
0.5m
1m
1.5m
2m
0
1:25
0.5m
1m
1.5m
1:33
1/3
2.5m
2m
0
1m
2m
3m
0
1:50
1m
2m
3m
4m
5m
CAD FILE NAME: P:0CAD000SPEM**
MODEL UPDATED:
DWG. FILE UPDATED:
MANUAL CHANGES MADE: YES NO YES NO YES NO
PROJECT MANAGER
ENGINEERING MANAGER
AREA PROJECTENGINEER
REFERENCE DRAWINGS
SAFETY SHARE:
APPROVAL DATE
CONTRACT
NO.
SAFETY SHARE :
BA6CVA1.IGR
NOTICE: THIS DRAWING HAS NOT BEEN PUBLISHED AND IS THE SOLE
PROPERTY OF FLUOR AND IS LENT TO THE BORROWER FOR THEIR
CONFIDENTIAL USE ONLY, AND IN CONSIDERATION OF THE LOAN OF THIS
DRAWING, THE BORROWER PROMISES AND AGREES TO RETURN IT UPON
REQUEST AND AGREES THAT IT WILL NOT BE REPRODUCED, COPIED LENT
OR OTHERWISE DISPOSED OF DIRECTLY OR INDIRECTLY, NOR USED FOR
ANY OTHER PURPOSE OTHER THAN WHICH IT IS FURNISHED.
NONE
Apr 2011
240K-C2-
3310
00123 B
SE
3310
00123 B
ST
3310
00123 B
SI
3310
00123
SDI
H, P1
3310
00135 A
LE
3310
00135 B
LE
3310
00135 B
LSH
3310
00135 B
LAH H, P1
3310
00115 A
LE
3310
00115 B
LE
3310
00115 B
LSH
3310
00115 B
LAH P1
BIN CONTINUED ON
PID 3310-25J-004
T5
V
V
ES
V
ES
V
ES
ES
ES
V
V
V
V
ES
V
V
V
ES
V
ES
ES
ES
ES
AG
KM
LT
ISSUED FOR CLIENT REVIEW
23-Dec-11
B
RP
ISSUED FOR COMBINED REVIEW
29-Jun-11
A
12/23/2011
K. MUNDY
A. GUNSON
W. BIE
L. TAMELIN
12/23/2011
9:37:10
AM
WBS: 3310
B
PIPING AND INSTRUMENTATION DIAGRAM
BALL MILL FEED
3300-25J-001
SCREEN FEEDER 101
V
LHS
P2
A,B
V
RHS LHS
LHS
A,B
LHS
RHS LHS
RHS
3310
00130
SE
TERTIARY CRUSHER
BALL MILL FEED SURGE BIN,
C2-3310-BN-201
1483 3300-25J-004
C2-3310-ST-351
C2-3310-ST-175 C2-3310-ST-176
C2-3310-ZM-069
SIZE:
MOTOR:
C2-3310-ZM-069
SPILE BAR INSERTION UNIT - BALL MILL BIN
SIZE:
C2-3310-ST-175
BALL MILL FEED BIN INSERT
SIZE:
C2-3310-ST-176
BALL MILL FEED BIN INSERT
SIZE: 2134 mm X 42 m L
MOTOR: 112.00 kW
C2-3310-CV-060
BALL MIL SCREEN FEED CONVEYOR NO. 1
SIZE:
MOTOR:
C2-3310-FE-101
BALL MILL SCREEN FEEDER
SIZE:
MOTOR:
C2-3310-FA-173
BALL MILL FEED BIN DUST COLLECTOR FAN
SIZE:
C2-3310-ST-351
BALL MILL SCREEN FEED CONVEYOR SKIRT
PRODUCT
PRODUCT
M
3310
00183
HS
3310
00183
XA
3310
00183
II
FAULT
J/SP
C2-3310-DC-172
C2-3310-FA-172
TO ATMOSPHERE
PRODUCT
SIZE:
C2-3310-DC-172
BALL MILL FEED BIN DUST COLLECTOR (DRY)
SIZE:
MOTOR:
C2-3310-FA-172
BALL MILL FEED BIN DUST COLLECTOR FAN
V
V
V
V
V
V
A,B
A,B
3310
00105
ZAH
3310
01104
ZAH
P2
P2
3310
00104
ZAHH
3310
00105
ZAHH
RHS
C, D
P1
LHS
C, D
P1
3310
00105
ZAH
3310
01104
ZAH
P2
P2
V
C,D
V
C,D
V V
V V
V
V
A,B
A,B
3310
00125
ZAHH
3310
00124
ZAHH
P1
PRODUCT
3310-AP-1075-C1A-2"-N
VENDOR
VENDOR
3310
00182
HS 3310
00111
XA
+
J/SP
FAULT
AFD
GEAR
REDUCER T4
3310
00141
VE
3310
00141
VT
3310
00143
TE
3310
00142
LE
3310
00142
LSL
3310
00142
LA
3310
00141
VI
ES
V V V
V
V
V
H, P2
HH, P1 3310
00143
TI
L, P2
H, P2
HH, P1
ES
3310
00119
PDAH
3310
00139
PDAH
NOTE:
1. THE BALL MILL SCREEN FEEDER AND BALL MILL SCREEN FEED CONVEYOR DUST
SUPPRESSION SYSTEM WILL BE FURTHER DEFINED IN REVISIONS. SPRAY WATER
WILL BE SUPPLIED BY THE PROCESS WATER SYSTEM.
RHS
LHS
T5
LHS
3310
00204
ZSHH
3310
00205
ZSHH
3310
00230
WIT
RHS
3310
00215 B
LSH
3310
00201
HSS
3310
00206 A
TI HH, P1
H, P2
3310
00235 B
LE
3310
00215 B
LAH
P1
3310
00224
ZSH
A,B
3310
00225
ZSH
RHS
3310
00208
XA
3310
00204
ZSH
LHS
A,B
3310
00203 A
ST
3310
00208 A
XS
TEAR
3310
00235 B
LSH
3310
00223 B
ST
3310
00227 A
TI HH, P1
H, P2
3310
00223 B
SE
3310
00221
HSS
3310
00215 A
LE
3310
00203 A
SI
3310
00206 B
TI HH, P1
H, P2
3310
00203 A
SE
3310
00204
ZAHH
LHS
A,B
3310
00203 B
ST
3310
00230
WE
3310
00230
WI
3310
00207 A
TI
3310
00208 B
XS
LHS
3310
00235 A
LAH
P1
3310
00226 A
TI HH, P1
H, P2
3310
00204
ZSHH
3310
00201
HSA
3310
00215 A
LSH
3310
00207 B
TI
3310
00222
HSA
A,B
RHS
3310
00224
ZSHH
3310
00225
ZSHH
A,B
3310
00226 B
TE
3310
00221
HSA LHS
3310
00226 B
TI HH, P1
H, P2
3310
00222
HSS
RHS
3310
00206 B
TE
3310
00230
SE
3310
00207 A
TE
3310
00227 A
TE
3310
00203 B
SI
3310
00205
ZAHH
3310
00202
HSS
RHS 3310
00215 B
LE
3310
00206 A
TE
RHS
3310
00227 B
TI
3310
00202
HSA
3310
00223
SDI
H, P1
3310
00204
ZSH
LHS
3310
00223 B
SI
3310
00223 A
SE
3310
00215 A
LAH
P1
3310
00205
ZSH
3310
00223 A
SI
3310
00226 A
TE
3310
00207 B
TE
3310
00223 A
ST
3310
00203 B
SE
3310
00205
ZSHH
3310
00203
SDI
3310
00235 B
LAH
P1
3310
00235 A
LSH
3310
00205
ZSH
C,D
3310
00227 B
TE
3310
00235 A
LE
TERTIARY CRUSHER
BALL MILL SCREEN FEED
BOX, C2-3310-BX-108
1298 3300-25J-003
TERTIARY CRUSHER
BALL MILL FEED SURGE BIN,
C2-3310-BN-101
1289 3300-25J-001
WATER RATIO CONTROLLER,
3310-FFFIC-00321
1299 3300-25J-003
HH, P1
H, P2
A-B
RHS
A,B
RHS
HH, P1
H, P2
P1
A,B
P1
HH, P1
H, P2
RHS
P1
A,B
LHS
RHS
P1
A,B
A,B
A,B
RHS
A-B
A,B
P1
LHS
LHS
A,B
A,B
C,D
P1
LHS
LHS
RHS
C2-3310-CV-061
C2-3310-FE-102
C2-3310-ST-332
C2-3310-ST-104
C2-3310-SL-112
V V
V V
C2-3310-ST-352
SIZE:
C2-3310-ST-352
BALL MIL SCREEN FEED CONVEYOR SKIRT
SIZE:
MOTOR:
C2-3310-FE-102
BALL MILL SCREEN FEEDER
SIZE: 2134 mm x 42 m L
MOTOR: 112.00 kW
C2-3310-CV-061
BALL MILL SCREEN FEED CONVEYOR NO. 2
ES
SIZE:
C2-3310-ST-332
BALL MILL SCREEN FEED CONVEYOR HEAD CHUTE
SIZE:
C2-3310-ST-104
BALL MILL SCREEN FEED CHUTE
ES
V
V
ES
V
SIZE:
C2-3310-SL-112
BALL MILL SCREEN FEEDER BELT SCALE
V
ES
V
V
V
ES
ES
V
V
ES
AG
KM
LT
ISSUED FOR CLIENT REVIEW
23-Dec-11
B
RP
ISSUED FOR COMBINED REVIEW
29-Jun-11
A
12/23/2011
K. MUNDY
A. GUNSON
W. BIE
L. TAMELIN
12/21/2011
1:47:27
PM
WBS: 3310
B
PIPING AND INSTRUMENTATION DIAGRAM
BALL MILL FEED
3300-25J-002
SCREEN FEEDER 102
D
4
F
B
A
3
2
1 5 6 8
E
7
C
REV.
APPROVED
CHK.
DES.
REV. DATE REVISION DESCRIPTION
CLIENT
LEAD ENGINEER
SCALE DRAWING NUMBER
CHECK DESIGN CHECK DRAWING
DESIGNED BY DRAWN BY
APPROVAL DATE
APPROVAL DATE
APPROVED
CHK.
DES.
REV. DATE REVISION DESCRIPTION REFERENCE DRAWING No.
1:100
0
1:200
5m
10m
0
5m
10m
15m
20m
1:500
10m
0
20m
30m
40m
50m
1:1000
0
100m
50m
1:20
0
0.5m
1m
1.5m
2m
0
1:25
0.5m
1m
1.5m
1:33
1/3
2.5m
2m
0
1m
2m
3m
0
1:50
1m
2m
3m
4m
5m
CAD FILE NAME: P:0CAD000SPEM**
MODEL UPDATED:
DWG. FILE UPDATED:
MANUAL CHANGES MADE: YES NO YES NO YES NO
PROJECT MANAGER
ENGINEERING MANAGER
AREA PROJECTENGINEER
REFERENCE DRAWINGS
SAFETY SHARE:
APPROVAL DATE
CONTRACT
NO.
SAFETY SHARE :
BA6CVA1.IGR
NOTICE: THIS DRAWING HAS NOT BEEN PUBLISHED AND IS THE SOLE
PROPERTY OF FLUOR AND IS LENT TO THE BORROWER FOR THEIR
CONFIDENTIAL USE ONLY, AND IN CONSIDERATION OF THE LOAN OF THIS
DRAWING, THE BORROWER PROMISES AND AGREES TO RETURN IT UPON
REQUEST AND AGREES THAT IT WILL NOT BE REPRODUCED, COPIED LENT
OR OTHERWISE DISPOSED OF DIRECTLY OR INDIRECTLY, NOR USED FOR
ANY OTHER PURPOSE OTHER THAN WHICH IT IS FURNISHED.
NONE
Apr 2011
240K-C2-
V
V
LHS
3310
00204
ZAH
3310
00205
ZAH
P1
P2 P2
P1
3310
00204
ZAHH
LHS
C,D
3310
00205
ZAHH
RHS
C,D
3310
00204
ZAH
3310
00205
ZAH
P1
P2 P2
P1
A,B
C,D
A,B
A,B C,D
V
V
V
V
V
V
V
V
V V
3310
00224
ZAHH
LHS
C,D
3310
00225
ZAHH
RHS
C,D
3310
00224
ZAH
3310
00225
ZAH
P1
P2 P2
P1
V
PRODUCT
PRODUCT
3310
00282
II
3310
00282 H
TI
BRG
REAR
H,P2
HH,P1
3310
00282 G
TI
BRG
FRONT
H,P2
HH,P1
3310
00282 G
TE
3310
00282
XA
3310
00282 H
TE
V V
3310
00282
HS 3310
00211
XA
+
J/SP
FAULT
AFD
ES
3310
00292
XA
3310
00292
HS
J/SP
3310
00292
II
FAULT
3310
00231
XA
+
3310
00241
VE
3310
00241
VT
3310
00243
TE
3310
00242
LE
3310
00242
LSL
3310
00242
LA
3310
00241
VI
ES
V V V
V
V
V
H, P2
HH, P1 3310
00243
TI
L, P2
H, P2
HH, P1
GEAR
REDUCER T4
ES
NOTE:
1. THE BALL MILL SCREEN FEEDER AND BALL MILL SCREEN FEED CONVEYOR DUST
SUPPRESSION SYSTEM WILL BE FURTHER DEFINED IN REVISIONS. SPRAY WATER
WILL BE SUPPLIED BY THE PROCESS WATER SYSTEM.
T1
T1
M
3310
00301
FIC
3310
00304
LAH
3310
00303
VSL
3310
00301
FIT
3310
00322
FIT
3310
00321
FIT
3310
00321
FFFIC
M
3310
00323
VAL
3310
00324
LAH
3310
00303
VAL
M
3310
00301
FFFIC
3310
00323
VT
3310
00381
XA
3310
00381
II
3310
00323
VSL
3310
00323
VE
3310
00324
LSH
3310
00321
FIC
3310
00302
FIC
3310
00304
LSH
3310
00391
II
3310
00381
HS
M
3310
00303
VT
3310
00391
XA
3310
00322
FIC
3310
00303
VE
3310
00302
FIT
3310
00391
HS
PROCESS WATER
1301
3900-25J-014
PROCESS WATER
1302
3900-25J-014
BALL MILL SCREEN O/S
BALL MILL SCREEN OVERSIZE
CONVEYOR NO. 1,
1308 3300-25J-020
PROCESS WATER
1303
3900-25J-014
C2-3310-CV-061
FEED TONNAGE
3310-WI-00230,
1299 3300-25J-002
PROCESS WATER
1300
3900-25J-014
BALL MILL SCREEN U/S
PRIMARY CYCLONE FEED
SUMP NO. 1, C2-3310-BX-101
1310 3300-25J-022
BALL MILL SCREEN U/S
PRIMARY CYCLONE FEED
SUMP NO. 1, C2-3310-BX-101
1309 3300-25J-022
TERTIARY CRUSHER
SCREEN FEED CONVEYOR
NO. 1, C2-3310-CV-060
1294 3300-25J-001
BALL MILL SCREEN O/S
BALL MILL SCREEN OVERSIZE
CONVEYOR NO. 1,
1304 3300-25J-020
TERTIARY CRUSHER
SCREEN FEED CONVEYOR
NO. 2, C2-3310-CV-061
1298 3300-25J-002
PRODUCT
FEED TONNAGE
1293 3300-25J-001
FAULT
J/SP
C2-3310-CV-019
C2-3310-CV-019
PRODUCT
P1
P2
P2
J/SP
FAULT
P1
C2-3310-ST-106
3310
00322
FE
+
C2-3310-BX-107
3310
00301
FV
+
24"x20"
24"x10"
C2-3310-ST-108
10"
4"
10"
3310
00302
FE
+
C2-3310-BX-108
C2-3310-SC-101
FC
FC
FC
FC
3310
00321
FE
+
24"x10"
10"
3310
00322
FV
+
C2-3310-ST-105 3310
00302
FV
+
24"x10"
3310
00321
FV
+
10"
C2-3310-ST-107
SIZE: 3.6 m X 8.5 m
MOTOR:
C2-3310-SC-102
BALL MILL FEED SCREEN
SIZE: 3.6 m X 8.5 m
MOTOR:
C2-3310-SC-101
BALL MILL FEED SCREEN
3310
00301
FE
+
4"
4"
24"x10"
24"x20"
C2-3310-SC-102
3310-WR-1353-C1A-2"-N
3310-WR-1359-C1A-2"-N
3310-WR-1351-C1A-8"-N
SIZE:
C2-3310-BX-108
BALL MILL SCREEN FEED BOX
ES
3310-WR-1344-C1A-2"-N
SIZE:
C2-3310-ST-105
BALL MILL FEED SCREEN OVERSIZE CHUTE
3310-WR-1345-C1A-2"-N
3310-WR-1107-C1A-24"-N
3310-WR-1355-C1A-2"-N
3310-WR-1356-C1A-2"-N
3310-WR-1347-C1A-2"-N
3310-WR-1342-C1A-2"-N
3310-WR-1354-C1A-2"-N
SIZE:
C2-3310-BX-107
BALL MILL SCREEN FEED BOX
SIZE:
C2-3310-ST-107
BALL MILL FEED SCREEN UNDERSIZE CHUTE
SIZE:
C2-3310-ST-106
BALL MILL FEED SCREEN OVERSIZE CHUTE
ES
3310-WR-1358-C1A-2"-N
ES
3310-WR-1104-C1A-24"-N
3310-WR-1348-C1A-20"-N
3310-WR-1357-C1A-2"-N
3310-WR-1336-C1A-20"-N
SIZE:
C2-3310-ST-108
BALL MILL FEED SCREEN UNDERSIZE CHUTE
ES
3310-WR-1339-C1A-8"-N
3310-WR-1341-C1A-2"-N
3310-WR-1343-C1A-2"-N
3310-WR-1106-C1A-8"-N
ES
3310-WR-1105-C1A-8"-N
ES
3310-WR-1346-C1A-2"-N
AG
KM
LT
ISSUED FOR CLIENT REVIEW
23-Dec-11
B
RP
ISSUED FOR COMBINED REVIEW
29-Jun-11
A
12/23/2011
K. MUNDY
A. GUNSON
W. BIE
L. TAMELIN
12/21/2011
2:09:18
PM
WBS: 3310
B
PIPING AND INSTRUMENTATION DIAGRAM
BALL MILL FEED
3300-25J-003
SCREENS 101 AND 102
D
4
F
B
A
3
2
1 5 6 8
E
7
C
REV.
APPROVED
CHK.
DES.
REV. DATE REVISION DESCRIPTION
CLIENT
LEAD ENGINEER
SCALE DRAWING NUMBER
CHECK DESIGN CHECK DRAWING
DESIGNED BY DRAWN BY
APPROVAL DATE
APPROVAL DATE
APPROVED
CHK.
DES.
REV. DATE REVISION DESCRIPTION REFERENCE DRAWING No.
1:100
0
1:200
5m
10m
0
5m
10m
15m
20m
1:500
10m
0
20m
30m
40m
50m
1:1000
0
100m
50m
1:20
0
0.5m
1m
1.5m
2m
0
1:25
0.5m
1m
1.5m
1:33
1/3
2.5m
2m
0
1m
2m
3m
0
1:50
1m
2m
3m
4m
5m
CAD FILE NAME: P:0CAD000SPEM**
MODEL UPDATED:
DWG. FILE UPDATED:
MANUAL CHANGES MADE: YES NO YES NO YES NO
PROJECT MANAGER
ENGINEERING MANAGER
AREA PROJECTENGINEER
REFERENCE DRAWINGS
SAFETY SHARE:
APPROVAL DATE
CONTRACT
NO.
SAFETY SHARE :
BA6CVA1.IGR
NOTICE: THIS DRAWING HAS NOT BEEN PUBLISHED AND IS THE SOLE
PROPERTY OF FLUOR AND IS LENT TO THE BORROWER FOR THEIR
CONFIDENTIAL USE ONLY, AND IN CONSIDERATION OF THE LOAN OF THIS
DRAWING, THE BORROWER PROMISES AND AGREES TO RETURN IT UPON
REQUEST AND AGREES THAT IT WILL NOT BE REPRODUCED, COPIED LENT
OR OTHERWISE DISPOSED OF DIRECTLY OR INDIRECTLY, NOR USED FOR
ANY OTHER PURPOSE OTHER THAN WHICH IT IS FURNISHED.
NONE
Apr 2011
240K-C2-
3310-WR-1105-C1A-8"-N
V V V
3310-WR-1106-C1A-8"-N
V V V
4"
4"
4"
4"
4"
PLANT AIR
1482 3900-25J-022
TERTIARY CRUSHER
HPGR PRODUCT CONVEYOR
NO. 1, C2-3230-CV-018
1483 3300-25J-001
TERTIARY CRUSHER
BALL MILL SCREEN FEEDER,
C2-3310-FE-202
1484 3300-25J-005
TERTIARY CRUSHER
BALL MILL SCREEN FEED
BOX, C2-3310-BX-207
1486 3300-25J-006
WATER RATIO CONTROLLER,
3310-FFFIC-00601
1487 3300-25J-006
D
4
F
B
A
3
2
1 5 6 8
E
7
C
REV.
APPROVED
CHK.
DES.
REV. DATE REVISION DESCRIPTION
CLIENT
LEAD ENGINEER
SCALE DRAWING NUMBER
CHECK DESIGN CHECK DRAWING
DESIGNED BY DRAWN BY
APPROVAL DATE
APPROVAL DATE
APPROVED
CHK.
DES.
REV. DATE REVISION DESCRIPTION REFERENCE DRAWING No.
1:100
0
1:200
5m
10m
0
5m
10m
15m
20m
1:500
10m
0
20m
30m
40m
50m
1:1000
0
100m
50m
1:20
0
0.5m
1m
1.5m
2m
0
1:25
0.5m
1m
1.5m
1:33
1/3
2.5m
2m
0
1m
2m
3m
0
1:50
1m
2m
3m
4m
5m
CAD FILE NAME: P:0CAD000SPEM**
MODEL UPDATED:
DWG. FILE UPDATED:
MANUAL CHANGES MADE: YES NO YES NO YES NO
PROJECT MANAGER
ENGINEERING MANAGER
AREA PROJECTENGINEER
REFERENCE DRAWINGS
SAFETY SHARE:
APPROVAL DATE
CONTRACT
NO.
SAFETY SHARE :
BA6CVA1.IGR
NOTICE: THIS DRAWING HAS NOT BEEN PUBLISHED AND IS THE SOLE
PROPERTY OF FLUOR AND IS LENT TO THE BORROWER FOR THEIR
CONFIDENTIAL USE ONLY, AND IN CONSIDERATION OF THE LOAN OF THIS
DRAWING, THE BORROWER PROMISES AND AGREES TO RETURN IT UPON
REQUEST AND AGREES THAT IT WILL NOT BE REPRODUCED, COPIED LENT
OR OTHERWISE DISPOSED OF DIRECTLY OR INDIRECTLY, NOR USED FOR
ANY OTHER PURPOSE OTHER THAN WHICH IT IS FURNISHED.
NONE
Apr 2011
240K-C2-
BIN CONTINUED ON
PID 3310-25J-007
BIN CONTINUED ON
PID 3300-25J-001
AG
KM
LT
ISSUED FOR CLIENT REVIEW
23-Dec-11
B
RP
ISSUED FOR COMBINED REVIEW
29-Jun-11
A
12/23/2011
K. MUNDY
A. GUNSON
W. BIE
L. TAMELIN
12/23/2011
9:40:06
AM
WBS: 3310
B
PIPING AND INSTRUMENTATION DIAGRAM
BALL MILL FEED
3300-25J-004
SCREEN FEEDER 201
TERTIARY CRUSHER
BALLMILL FEED SURGE BIN,
C2-3310-BIN-301
1506 3300-25J-007
V
M
LHS
3310
00405
ZSH
3310
00405
ZSH
3310
00423 A
SI
3310
00404
ZSH
3310
00404
ZSH
3310
00437
LAL
3310
00437
LSL
3310
00481
HS
3310
00415 A
LAH
3310
00415 A
LSH
3310
00416 A
LI
3310
00416
LIT
3310
00416
LI
3310
00416
LE
3310
00417
LAL
3310
00417
LSL
3310
00436 A
LI
3310
00426 A
TI HH, P1
H, P2
3310
00436
LIT
3310
00481
XA
3310
00426 A
TE
3310
00430
WIT
3310
00424
ZAH
3310
00430
WE
3310
00423 A
ST
3310
00423 A
SE
3310
00427 B
TE
3310
00436
LE
3310
00403 A
SI
3310
00407 B
TE
3310
00403 B
SE
3310
00406 B
TI HH, P1
H, P2
3310
00408
XA P1
3310
00406 B
TE
3310
00406 A
TI HH, P1
H, P2
3310
00402
HSA
3310
00426 B
TI
3310
00406 A
TE
3310
00108 B
XS
3310
00404
ZSHH
LHS
3310
00408 A
XS
3310
00405
ZSHH
C,D
RHS
3310
00405
ZSHH
3310
00403 A
ST
3310
00401
HSS
3310
00403 B
ST
3310
00403
SDI
3310
00426 B
TE
3310
00435 A
LAH
3310
00425
ZAH
P1
3310
00422
HSA
LHS
3310
00481
II
3310
00436
LI
HH, P1
H, P2
L, P2
3310
00402
HSS
RHS
3310
00403 B
SI
3310
00407 B
TI HH, P1
H, P2
3310
00404
ZAHH
3310
00403 A
SE
3310
00405
ZAHH
3310
00407 A
TI HH, P1
H, P2
3310
00407 A
TE
3310
00421
HSA
3310
00435 A
LSH
3310
00421
HSS
3310
00425
ZSHH
A,B
3310
00422
HSS
RHS
3310
00425
ZSH
3310
00424
ZSHH
3310
00424
ZSH
LHS
A,B
3310
00404
ZSHH
LHS
3310
00401
HSA
3310
00427 A
TI
HH, P1
H, P2
3310
00427 A
TE
3310
00427 B
TI
3310
00430
WI
P1
A,B
P1
A-B RHS
TEAR
A,B C,D
RHS
A,B
P1
LHS
A,B
P1
RHS
RHS
H, P1
LHS
P1
A-B
LHS
A,B
P1
P1
A,B
LHS
A,B
H, P1
RHS
HH, P1
H, P2
HH, P1
H, P2
RHS
P2
A,B
A,B
RHS
A,B
FAULT
P1
ST/SP
HH, P1
H, P2
L, P2
P1
A,B
C2-3310-DC-101
C2-3310-ST-202
C2-3310-ST-201
C2-3310-ST-203
C2-3310-FA-101
C2-3310-ST-333
C2-3310-SL-211
C2-3310-FE-201
C2-3310-CV-062
3310-AP-1302-C1A-2"-N
C2-3310-BN-201
SIZE:
C2-3310-DC-101
BALL MILL FEED BIN DUST COLLECTOR
SIZE: 8000 t
C2-3310-BN-201
BALL MILL FEED SURGE BIN
SIZE:
C2-3310-ST-201
BALL MILL SCREEN FEEDER SKIRT
SIZE:
C2-3310-ST-202
BALL MILL SCREEN FEEDER SKIRT
SIZE:
C2-3310-ST-203
BALL MILL SCREEN FEED CHUTE
SIZE:
C2-3310-SL-211
BALL MILL SCREEN FEEDER BELT SCALE
SIZE:
C2-3310-ST-333
BALL MILL SCREEN FEED CONVEYOR HEAD CHUTE
TO ATMOSPHERE
3310
00423 B
SE
3310
00423 B
ST
3310
00423 B
SI
3310
00423
SDI
H, P1
3310
00435 A
LE
3310
00435 B
LE
3310
00435 B
LSH
3310
00435 B
LAH H, P1
3310
00415 A
LE
3310
00415 B
LE
3310
00415 B
LSH
3310
00415 B
LAH P1
T5
V
V
ES
V
ES
V
ES
ES
ES
V
V
V
V
ES
V
V
V
ES
V
ES
ES
ES
ES
V
LHS
P2
A,B
V
RHS LHS
LHS
A,B
LHS RHS LHS
RHS
3310
00430
SE
C2-3310-ST-353
C2-3310-ST-177 C2-3310-ST-178
SIZE:
C2-3310-ST-177
BALL MILL FEED BIN INSERT
SIZE:
C2-3310-ST-178
BALL MILL FEED BIN INSERT
SIZE: 2134 mm X 42 m L
MOTOR: 112.00 kW
C2-3310-CV-062
BALL MILL SCREEN FEED CONVEYOR NO. 3
SIZE:
MOTOR:
C2-3310-FE-201
BALL MILL SCREEN FEEDER
SIZE:
MOTOR:
C2-3310-FA-101
BALL MILL FEED BIN DUST COLLECTOR FAN
SIZE:
C2-3310-ST-353
BALL MILL SCREEN FEED CONVEYOR SKIRT
PRODUCT
M
3310
00483
HS
3310
00483
XA
3310
00483
II
FAULT
ST/SP
C2-3310-DC-171
C2-3310-FA-171
TO ATMOSPHERE
SIZE:
C2-3310-DC-171
BALL MILL FEED BIN DUST COLLECTOR
SIZE:
MOTOR:
C2-3310-FA-171
BALL MILL FEED BIN DUST COLLECTOR FAN
V
V
V
V
V
V
A,B
A,B
3310
00405
ZAH
3310
00404
ZAH
P2
P2
3310
00404
ZAHH
3310
00405
ZAHH
RHS
C, D
P1
LHS
C, D
P1
3310
00405
ZAH
3310
00404
ZAH
P2
P2
V
C,D
V
C,D
V V
V
V
A,B
A,B
3310
00425
ZAHH
3310
00424
ZAHH
P1
PRODUCT
PRODUCT
3310-AP-1303-C1A-2"-N
PRODUCT
VENDOR
VENDOR
3310
00482
II
3310
00482 H
TI
BRG
REAR
H,P2
HH,P1
3310
00482 G
TI
BRG
FRONT
H,P2
HH,P1
3310
00482 G
TE
3310
00482
XA
3310
00482 H
TE
V V
3310
00482
HS 3310
00411
XA
+
J/SP
FAULT
AFD
3310
00492
XA
3310
00492
HS
J/SP
3310
00492
II
FAULT
3310
00431
XA
+
3310
00441
VE
3310
00441
VT
3310
00443
TE
3310
00442
LE
3310
00442
LSL
3310
00442
LA
3310
00441
VI
ES
V V V
V
V
V
H, P2
HH, P1 3310
00443
TI
L, P2
H, P2
HH, P1
GEAR
REDUCER T4
ES
3310
00419
PDAH
3310
00439
PDAH
NOTE:
1. THE BALL MILL SCREEN FEEDER AND BALL MILL SCREEN FEED CONVEYOR DUST
SUPPRESSION SYSTEM WILL BE FURTHER DEFINED IN REVISIONS. SPRAY WATER
WILL BE SUPPLIED BY THE PROCESS WATER SYSTEM.
T5
RHS
3310
00504
ZSHH
3310
00505
ZSHH
RHS
3310
00523 B
ST
3310
00503 B
ST
3310
00527 A
TE
3310
00535 B
LAH
P1
3310
00525
ZAH
3310
00504
ZAHH
3310
00505
ZAH
3310
00504
ZAH
3310
00524
ZAH
P2
3310
00505
ZAH
3310
00504
ZAH
3310
00507 B
TE
3310
00506 B
TE
3310
00525
ZSHH
A,B
3310
00504
ZAHH
3310
00505
ZAHH
P1
3310
00527 B
TE
3310
00525
ZSH
RHS
3310
00506 A
TI HH, P1
H, P2
3310
00535 A
LSH
3310
00526 A
TE
3310
00504
ZSHH
LHS
A,B
3310
00508
XA
A,B
P1
3310
00524
ZSH
LHS
A,B
3310
00506 B
TI HH, P1
H, P2
3310
00527 B
TI
3310
00526 B
TE
3310
00501 A
HSS
3310
00503 B
SE
3310
00535 B
LSH
3310
00503 A
SI
3310
00504
ZSH
LHS
3310
00505
ZSH
3310
00523 B
SE
3310
00530
SE
3310
00505
ZAHH
P1
3310
00515 A
LSH
3310
00530
WIT
3310
00521
HSA LHS
3310
00523 A
SI
3310
00502 A
HSS
RHS
3310
00503
SDI
3310
00523 A
SE
3310
00525
ZAHH
3310
00526 B
TI HH, P1
H, P2
3310
00503 A
ST
3310
00527 A
TI HH, P1
H, P2
3310
00508 A
XS
TEAR
3310
00508 B
XS
3310
00515 B
LE
3310
00522
HSS
RHS
3310
00521
HSS
3310
00524
ZSHH
3310
00526 A
TI HH, P1
H, P2
3310
00535 B
LE
3310
00505
ZSH
3310
00524
ZAHH
3310
00535 A
LE
3310
00507 A
TI
3310
00535 A
LAH
P1
3310
00507 A
TE
3310
00530
WI
3310
00523
SDI
H, P1
3310
00507 B
TI
3310
00505
ZSHH
A,B
3310
00504
ZSH
A, B
3310
00503 B
SI
3310
00506 A
TE
3310
00523 A
ST
3310
00530
WE
3310
00522
HSA RHS
A,B
3310
00515 A
LE
3310
00515 B
LAH
P1
3310
00501
HSA
3310
00503 A
SE
3310
00515 A
LAH
P1
3310
00515 B
LSH
3310
00502
HSA
3310
00523 B
SI
WATER RATIO CONTROLLER,
3310-FFFIC-00621
1589 3300-25J-006
TERTIARY CRUSHER
BALL MILL SCREEN FEED
BOX, C2-3310-BX-208
1588 3300-25J-006
TERTIARY CRUSHER
BALL MILL FEED SURGE BIN,
C2-3310-BN-201
1484 3300-25J-004
RHS LHS
RHS LHS
A,B
P1
LHS
PRODUCT
RHS
C,D
P1
P2
P2
RHS
A,B
LHS
C,D
P1
A,B
P1
P1
P2
P2 P2
C,D
C,D
LHS
A,B
HH, P1
H, P2
P1
RHS
A,B
HH, P1
H, P2
LHS
A,B
LHS
A,B
A,B
P1
A-B
H, P1
A,B
RHS
HH, P1
H, P2
LHS
A,B
A,B
C,D
A,B
P1
RHS
RHS
LHS
A-B
C,D
LHS
SIZE:
C2-3310-ST-334
BALL MILL SCREEN FEED CONVEYOR HEAD CHUTE
V
V
V
V
V
V
V
V
V V
V V
V
V
V
C2-3310-ST-334
C2-3310-ST-204
C2-3310-SL-212
SIZE:
C2-3310-SL-212
BALL MILL SCREEN FEEDER BELT SCALE
C2-3310-CV-063
SIZE:
C2-3310-ST-204
BALL MILL SCREEN FEED CHUTE
C2-3310-FE-202
SIZE:
MOTOR:
C2-3310-FE-202
BALL MILL SCREEN FEEDER
SIZE: 2134 mm x 42 m L
MOTOR: 112.00 kW
C2-3310-CV-063
BALL MILL SCREEN FEED CONVEYOR NO. 4
C2-3310-ST-354
SIZE:
C2-3310-ST-354
BALL MILL SCREEN FEED CONVEYOR SKIRT
ES
V
ES
ES
ES
V
V
ES
ES
ES
V
ES
V
V
V V
V
ES
AG
KM
LT
ISSUED FOR CLIENT REVIEW
23-Dec-11
B
RP
ISSUED FOR COMBINED REVIEW
29-Jun-11
A
12/23/2011
K. MUNDY
A. GUNSON
W. BIE
L. TAMELIN
12/21/2011
2:30:58
PM
WBS: 3310
B
PIPING AND INSTRUMENTATION DIAGRAM
BALL MILL FEED
3300-25J-005
SCREEN FEEDER 202
V V
V
D
4
F
B
A
3
2
1 5 6 8
E
7
C
REV.
APPROVED
CHK.
DES.
REV. DATE REVISION DESCRIPTION
CLIENT
LEAD ENGINEER
SCALE DRAWING NUMBER
CHECK DESIGN CHECK DRAWING
DESIGNED BY DRAWN BY
APPROVAL DATE
APPROVAL DATE
APPROVED
CHK.
DES.
REV. DATE REVISION DESCRIPTION REFERENCE DRAWING No.
1:100
0
1:200
5m
10m
0
5m
10m
15m
20m
1:500
10m
0
20m
30m
40m
50m
1:1000
0
100m
50m
1:20
0
0.5m
1m
1.5m
2m
0
1:25
0.5m
1m
1.5m
1:33
1/3
2.5m
2m
0
1m
2m
3m
0
1:50
1m
2m
3m
4m
5m
CAD FILE NAME: P:0CAD000SPEM**
MODEL UPDATED:
DWG. FILE UPDATED:
MANUAL CHANGES MADE: YES NO YES NO YES NO
PROJECT MANAGER
ENGINEERING MANAGER
AREA PROJECTENGINEER
REFERENCE DRAWINGS
SAFETY SHARE:
APPROVAL DATE
CONTRACT
NO.
SAFETY SHARE :
BA6CVA1.IGR
NOTICE: THIS DRAWING HAS NOT BEEN PUBLISHED AND IS THE SOLE
PROPERTY OF FLUOR AND IS LENT TO THE BORROWER FOR THEIR
CONFIDENTIAL USE ONLY, AND IN CONSIDERATION OF THE LOAN OF THIS
DRAWING, THE BORROWER PROMISES AND AGREES TO RETURN IT UPON
REQUEST AND AGREES THAT IT WILL NOT BE REPRODUCED, COPIED LENT
OR OTHERWISE DISPOSED OF DIRECTLY OR INDIRECTLY, NOR USED FOR
ANY OTHER PURPOSE OTHER THAN WHICH IT IS FURNISHED.
NONE
Apr 2011
240K-C2-
PRODUCT
3310
00582
II
3310
00582 H
TI
BRG
REAR
H,P2
HH,P1
3310
00582 G
TI
BRG
FRONT
H,P2
HH,P1
3310
00582 G
TE
3310
00582
XA
3310
00582 H
TE
V V
3310
00582
HS 3310
00511
XA
+
J/SP
FAULT
AFD
3310
00592
XA
3310
00592
HS
J/SP
3310
00592
II
FAULT
3310
00531
XA
+
3310
00541
VE
3310
00541
VT
3310
00543
TE
3310
00542
LE
3310
00542
LSL
3310
00542
LA
3310
00541
VI
ES
V V V
V
V
V
H, P2
HH, P1 3310
00543
TI
L, P2
H, P2
HH, P1
GEAR
REDUCER T4
NOTE:
1. THE BALL MILL SCREEN FEEDER AND BALL MILL SCREEN FEED CONVEYOR DUST
SUPPRESSION SYSTEM WILL BE FURTHER DEFINED IN REVISIONS. SPRAY WATER
WILL BE SUPPLIED BY THE PROCESS WATER SYSTEM.
D
4
F
B
A
3
2
1 5 6 8
E
7
C
REV.
APPROVED
CHK.
DES.
REV. DATE REVISION DESCRIPTION
CLIENT
LEAD ENGINEER
SCALE DRAWING NUMBER
CHECK DESIGN CHECK DRAWING
DESIGNED BY DRAWN BY
APPROVAL DATE
APPROVAL DATE
APPROVED
CHK.
DES.
REV. DATE REVISION DESCRIPTION REFERENCE DRAWING No.
1:100
0
1:200
5m
10m
0
5m
10m
15m
20m
1:500
10m
0
20m
30m
40m
50m
1:1000
0
100m
50m
1:20
0
0.5m
1m
1.5m
2m
0
1:25
0.5m
1m
1.5m
1:33
1/3
2.5m
2m
0
1m
2m
3m
0
1:50
1m
2m
3m
4m
5m
CAD FILE NAME: P:0CAD000SPEM**
MODEL UPDATED:
DWG. FILE UPDATED:
MANUAL CHANGES MADE: YES NO YES NO YES NO
PROJECT MANAGER
ENGINEERING MANAGER
AREA PROJECTENGINEER
REFERENCE DRAWINGS
SAFETY SHARE:
APPROVAL DATE
CONTRACT
NO.
SAFETY SHARE :
BA6CVA1.IGR
NOTICE: THIS DRAWING HAS NOT BEEN PUBLISHED AND IS THE SOLE
PROPERTY OF FLUOR AND IS LENT TO THE BORROWER FOR THEIR
CONFIDENTIAL USE ONLY, AND IN CONSIDERATION OF THE LOAN OF THIS
DRAWING, THE BORROWER PROMISES AND AGREES TO RETURN IT UPON
REQUEST AND AGREES THAT IT WILL NOT BE REPRODUCED, COPIED LENT
OR OTHERWISE DISPOSED OF DIRECTLY OR INDIRECTLY, NOR USED FOR
ANY OTHER PURPOSE OTHER THAN WHICH IT IS FURNISHED.
NONE
Apr 2011
240K-C2-
10"
C2-3310-ST-206
C2-3310-ST-208
C2-3310-SC-202
10"
C2-3310-BX-208
3310
00621
FV
+
3310
00601
FE
+
J/SP
P2
J/SP
P1
FAULT
FAULT
3310
00621
FE
+
10"
3310
00622
FV
+
24"x20"
3310
00622
FE
+
4"
4"
4"
C2-3310-ST-207
P1
P2
3310
00681
XA
3310
00602
FV
+
3310
00604
LAH
3310
00602
FIC
3310
00602
FE
+
3310
00602
FIT
3310
00603
VSL
C2-3310-SC-201
3310
00603
VE
3310
00603
VT
3310
00601
FIC
24"x20"
3310
00601
FIT
C2-3310-ST-205
3310
00603
VAL
3310
00681
II
24"x10"
3310
00604
LSH
3310
00681
HS
3310
00601
FFFIC
M
3310
00621
FFFIC
M
3310
00691
HS
3310
00691
XA
3310
00691
II
3310
00624
LAH
3310
00624
LSH
10"
3310
00623
VAL
3310
00623
VSL
3310
00623
VT
M
24"x10"
M
3310
00623
VE
3310
00622
FIC
3310
00622
FIT
3310
00601
FV
+
24"x10"
3310
00621
FIC
C2-3310-BX-207
24"x10"
3310
00621
FIT
C2-3310-CV-062
FEED TONNAGE,
3310-WI-00430
1487 3300-25J-004
TERTIARY CRUSHER
SCREEN FEED CONVEYOR
NO. 3, C2-3310-CV-062
1486 3300-25J-004
BALL MILL SCREEN O/S
BALL MILL SCREEN OVERSIZE
CONVEYOR NO. 1,
1305 3300-25J-020
BALL MILL SCREEN O/S
BALL MILL SCREEN OVERSIZE
CONVEYOR NO. 1,
1375 3300-25J-020
PROCESS WATER
1584
3900-25J-014
PROCESS WATER
1583
3900-25J-014
PROCESS WATER
1586
3900-25J-014
PROCESS WATER
1585
3900-25J-014
TERTIARY CRUSHER
SCREEN FEED CONVEYOR
NO. 4, C2-3310-CV-063
1588 3300-25J-005
C2-3310-CV-063
FEED TONNAGE,
3310-WI-00530
1589 3300-25J-005
BALL MILL SCREEN U/S
PRIMARY CYCLONE FEED
SUMP NO. 2, C2-3310-BX-201
1592 3300-25J-026
BALL MILL SCREEN U/S
PRIMARY CYCLONE FEED
SUMP NO. 2, C2-3310-BX-201
1591 3300-25J-026
T1
T1
ES
3310-WR-1098-C1A-8"-N
3310-WR-1375-C1A-8"-N
3310-WR-1099-C1A-8"-N
3310-WR-1381-C1A-2"-N
3310-WR-1362-C1A-20"-N
ES
3310-WR-1363-C1A-8"-N
SIZE:
C2-3310-BX-207
BALL MILL SCREEN FEED BOX
SIZE:
C2-3310-BX-208
BALL MILL SCREEN FEED BOX
3310-WR-1379-C1A-2"-N
3310-WR-1382-C1A-2"-N
3310-WR-1097-C1A-24"-N
3310-WR-1369-C1A-2"-N
SIZE:
C2-3310-ST-206
BALL MILL SCREEN OVERSIZE CHUTE
3310-WR-1368-C1A-2"-N
3310-WR-1372-C1A-20"-N
3310-WR-1370-C1A-2"-N
SIZE:
C2-3310-ST-208
BALL MILL FEED SCREEN UNDERSIZE CHUTE
SIZE:
C2-3310-ST-207
BALL MILL FEED SCREEN UNDERSIZE CHUTE
3310-WR-1100-C1A-24"-N
3310-WR-1366-C1A-2"-N
3310-WR-1365-C1A-2"-N
3310-WR-1377-C1A-2"-N
3310-WR-1371-C1A-2"-N
ES
ES
3310-WR-1383-C1A-2"-N
ES
3310-WR-1380-C1A-2"-N
3310-WR-1378-C1A-2"-N
SIZE:
C2-3310-ST-205
BALL MILL SCREEN OVERSIZE CHUTE
3310-WR-1367-C1A-2"-N
AG
KM
LT
ISSUED FOR CLIENT REVIEW
23-Dec-11
B
RP
ISSUED FOR COMBINED REVIEW
29-Jun-11
A
12/23/2011
K. MUNDY
A. GUNSON
W. BIE
L. TAMELIN
12/21/2011
3:06:01
PM
WBS: 3310
B
PIPING AND INSTRUMENTATION DIAGRAM
BALL MILL FEED
3300-25J-006
SCREENS 201 AND 202
SIZE: 3.6 m X 8.5 m
MOTOR:
C2-3310-SC-202
BALL MILL FEED SCREEN
SIZE: 3.6 m X 8.5 m
MOTOR:
C2-3310-SC-201
BALL MILL FEED SCREEN
FC
FC
FC
FC
PRODUCT
PRODUCT
C2-3310-CV-019
C2-3310-CV-019
3310-WR-1099-C1A-8"-N
V V V
ES
3310-WR-1098-C1A-8"-N
V V V
4"
4"
4"
4"
4"
PLANT AIR
1504 3900-25J-022
TERTIARY CRUSHER
HPGR PRODUCT CONVEYOR
NO. 1, C2-3230-CV-018
1506 3300-25J-004
TERTIARY CRUSHER
BALL MILL SCREEN FEEDER,
C2-3310-FE-302
1516 3300-25J-008
TERTIARY CRUSHER
BALL MILL SCREEN FEED
BOX, C2-3310-BX-307
1518 3300-25J-009
WATER RATIO CONTROLLER,
3310-FFFIC-09901
1519 3300-25J-009
D
4
F
B
A
3
2
1 5 6 8
E
7
C
REV.
APPROVED
CHK.
DES.
REV. DATE REVISION DESCRIPTION
CLIENT
LEAD ENGINEER
SCALE DRAWING NUMBER
CHECK DESIGN CHECK DRAWING
DESIGNED BY DRAWN BY
APPROVAL DATE
APPROVAL DATE
APPROVED
CHK.
DES.
REV. DATE REVISION DESCRIPTION REFERENCE DRAWING No.
1:100
0
1:200
5m
10m
0
5m
10m
15m
20m
1:500
10m
0
20m
30m
40m
50m
1:1000
0
100m
50m
1:20
0
0.5m
1m
1.5m
2m
0
1:25
0.5m
1m
1.5m
1:33
1/3
2.5m
2m
0
1m
2m
3m
0
1:50
1m
2m
3m
4m
5m
CAD FILE NAME: P:0CAD000SPEM**
MODEL UPDATED:
DWG. FILE UPDATED:
MANUAL CHANGES MADE: YES NO YES NO YES NO
PROJECT MANAGER
ENGINEERING MANAGER
AREA PROJECTENGINEER
REFERENCE DRAWINGS
SAFETY SHARE:
APPROVAL DATE
CONTRACT
NO.
SAFETY SHARE :
BA6CVA1.IGR
NOTICE: THIS DRAWING HAS NOT BEEN PUBLISHED AND IS THE SOLE
PROPERTY OF FLUOR AND IS LENT TO THE BORROWER FOR THEIR
CONFIDENTIAL USE ONLY, AND IN CONSIDERATION OF THE LOAN OF THIS
DRAWING, THE BORROWER PROMISES AND AGREES TO RETURN IT UPON
REQUEST AND AGREES THAT IT WILL NOT BE REPRODUCED, COPIED LENT
OR OTHERWISE DISPOSED OF DIRECTLY OR INDIRECTLY, NOR USED FOR
ANY OTHER PURPOSE OTHER THAN WHICH IT IS FURNISHED.
NONE
Apr 2011
240K-C2-
AG
KM
LT
ISSUED FOR CLIENT REVIEW
23-Dec-11
B
RP
ISSUED FOR COMBINED REVIEW
29-Jun-11
A
12/23/2011
K. MUNDY
A. GUNSON
W. BIE
L. TAMELIN
12/23/2011
9:43:17
AM
WBS: 3310
B
PIPING AND INSTRUMENTATION DIAGRAM
BALL MILL FEED
3300-25J-007
SCREEN FEEDER 301
BIN CONTINUED ON
PID 3310-25J-010
BIN CONTINUED ON
PID 3300-25J-004
V
M
LHS
3310
00705
ZSH
3310
00705
ZSH
3310
00723 A
SI
3310
00704
ZSH
3310
00704
ZSH
3310
00737
LAL
3310
00737
LSL
3310
00781
HS
3310
00715 A
LAH
3310
00715 A
LSH
3310
00716 A
LI
3310
00716
LIT
3310
00716
LI
3310
00716
LE
3310
00717
LAL
3310
00717
LSL
3310
00736 A
LI
3310
00726 A
TI HH, P1
H, P2
3310
00736
LIT
3310
00781
XA
3310
00726 A
TE
3310
00730
WIT
3310
00724
ZAH
3310
00730
WE
3310
00723 A
ST
3310
00723 A
SE
3310
00727 B
TE
3310
00736
LE
3310
00703 A
SI
3310
00707 B
TE
3310
00703 B
SE
3310
00706 B
TI HH, P1
H, P2
3310
00708
XA P1
3310
00706 B
TE
3310
00706 A
TI HH, P1
H, P2
3310
00702
HSA
3310
00726 B
TI
3310
00706 A
TE
3310
00708 B
XS
3310
00704
ZSHH
LHS
3310
00708 A
XS
3310
00705
ZSHH
C,D
RHS
3310
00705
ZSHH
3310
00703 A
ST
3310
00701
HSS
3310
00703 B
ST
3310
00703
SDI
3310
00726 B
TE
3310
00735 A
LAH
3310
00725
ZAH
P1
3310
00722
HSA
LHS
3310
00781
II
3310
00736
LI
HH, P1
H, P2
L, P2
3310
00702
HSS
RHS
3310
00703 B
SI
3310
00707 B
TI HH, P1
H, P2
3310
00704
ZAHH
3310
00703 A
SE
3310
00705
ZAHH
3310
00707 A
TI HH, P1
H, P2
3310
00707 A
TE
3310
00721
HSA
3310
00735 A
LSH
3310
00721
HSS
3310
00725
ZSHH
A,B
3310
00722
HSS
RHS
3310
00725
ZSH
3310
00724
ZSHH
3310
00724
ZSH
LHS
A,B
3310
00704
ZSHH
LHS
3310
00701
HSA
3310
00727 A
TI
HH, P1
H, P2
3310
00727 A
TE
3310
00727 B
TI
3310
00730
WI
P1
A,B
P1
A-B RHS
TEAR
A,B C,D
RHS
A,B
P1
LHS
A,B
P1
RHS
RHS
H, P1
LHS
P1
A-B
LHS
A,B
P1
P1
A,B
LHS
A,B
H, P1
RHS
HH, P1
H, P2
HH, P1
H, P2
RHS
P2
A,B
A,B
RHS
A,B
FAULT
P1
ST/SP
HH, P1
H, P2
L, P2
P1
A,B
C2-3310-DC-301
C2-3310-ST-302
C2-3310-ST-301
C2-3310-ST-303
C2-3310-FA-301
C2-3310-ST-335
C2-3310-SL-311
C2-3310-FE-301
C2-3310-CV-064
3310-AP-1304-C1A-2"-N
C2-3310-BN-301
SIZE:
C2-3310-DC-301
BALL MILL FEED BIN DUST COLLECTOR
SIZE:
C2-3310-BN-301
BALL MILL FEED SURGE BIN
SIZE:
C2-3310-ST-301
BALL MILL SCREEN FEEDER SKIRT
SIZE:
C2-3310-ST-302
BALL MILL SCREEN FEEDER SKIRT
SIZE:
C2-3310-ST-303
BALL MILL SCREEN FEED CHUTE
SIZE:
C2-3310-SL-311
BALL MILL SCREEN FEEDER BELT SCALE
SIZE:
C2-3310-ST-335
BALL MILL SCREEN FEED CONVEYOR HEAD CHUTE
TO ATMOSPHERE
3310
00723 B
SE
3310
00723 B
ST
3310
00723 B
SI
3310
00723
SDI
H, P1
3310
00735 A
LE
3310
00735 B
LE
3310
00735 B
LSH
3310
00735 B
LAH H, P1
3310
00715 A
LE
3310
00715 B
LE
3310
00715 B
LSH
3310
00715 B
LAH P1
T5
V
V
ES
V
ES
V
ES
ES
ES
V
V
V
V
ES
V
V
V
ES
V
ES
ES
ES
ES
V
LHS
P2
A,B
V
RHS LHS
LHS
A,B
LHS
RHS LHS
RHS
3310
00730
SE
C2-3310-ST-355
C2-3310-ST-179 C2-3310-ST-180
SIZE:
C2-3310-ST-179
BALL MILL FEED BIN INSERT
SIZE:
C2-3310-ST-180
BALL MILL FEED BIN INSERT
SIZE: 2134 mm X 42 m L
MOTOR: 112.00 kW
C2-3310-CV-064
BALL MILL SCREEN FEED CONVEYOR NO. 5
SIZE:
MOTOR:
C2-3310-FE-301
BALL MILL SCREEN FEEDER
SIZE:
MOTOR:
C2-3310-FA-301
BALL MILL FEED BIN DUST COLLECTOR FAN
SIZE:
C2-3310-ST-355
BALL MILL SCREEN FEED CONVEYOR SKIRT
PRODUCT
M
3310
00783
HS
3310
00783
XA
3310
00783
II
FAULT
ST/SP
C2-3310-DC-201
C2-3310-FA-201
TO ATMOSPHERE
SIZE:
C2-3310-DC-201
BALL MILL FEED BIN DUST COLLECTOR
SIZE:
MOTOR:
C2-3310-FA-201
BALL MILL FEED BIN DUST COLLECTOR FAN
V
V
V
V
V
V
A,B
A,B
3310
00705
ZAH
3310
00704
ZAH
P2
P2
3310
00704
ZAHH
3310
00705
ZAHH
RHS
C, D
P1
LHS
C, D
P1
3310
00705
ZAH
3310
00704
ZAH
P2
P2
V
C,D
V
C,D
V V
V
V
A,B
A,B
3310
00725
ZAHH
3310
00724
ZAHH
P1
PRODUCT
PRODUCT
3310-AP-1305-C1A-2"-N
VENDOR
VENDOR
3310
00782
II
3310
00782 H
TI
BRG
REAR
H,P2
HH,P1
3310
00782 G
TI
BRG
FRONT
H,P2
HH,P1
3310
00782 G
TE
3310
00782
XA
3310
00782 H
TE
V V
3310
00782
HS 3310
00711
XA
+
J/SP
FAULT
AFD
3310
00792
XA
3310
00792
HS
J/SP
3310
00792
II
FAULT
3310
00731
XA
+
3310
00741
VE
3310
00741
VT
3310
00743
TE
3310
00742
LE
3310
00742
LSL
3310
00742
LA
3310
00741
VI
ES
V V V
V
V
V
H, P2
HH, P1 3310
00743
TI
L, P2
H, P2
HH, P1
GEAR
REDUCER T4
ES
3310
00719
PDAH
3310
00739
PDAH
NOTE:
1. THE BALL MILL SCREEN FEEDER AND BALLMILL SCREEN FEED CONVEYOR DUST
SUPPRESSION SYSTEM WILL BE FURTHER DEFINED IN REVISIONS. SPRAY WATER
WILL BE SUPPLIED BY THE PROCESS WATER SYSTEM.
D
4
F
B
A
3
2
1 5 6 8
E
7
C
REV.
APPROVED
CHK.
DES.
REV. DATE REVISION DESCRIPTION
CLIENT
LEAD ENGINEER
SCALE DRAWING NUMBER
CHECK DESIGN CHECK DRAWING
DESIGNED BY DRAWN BY
APPROVAL DATE
APPROVAL DATE
APPROVED
CHK.
DES.
REV. DATE REVISION DESCRIPTION REFERENCE DRAWING No.
1:100
0
1:200
5m
10m
0
5m
10m
15m
20m
1:500
10m
0
20m
30m
40m
50m
1:1000
0
100m
50m
1:20
0
0.5m
1m
1.5m
2m
0
1:25
0.5m
1m
1.5m
1:33
1/3
2.5m
2m
0
1m
2m
3m
0
1:50
1m
2m
3m
4m
5m
CAD FILE NAME: P:0CAD000SPEM**
MODEL UPDATED:
DWG. FILE UPDATED:
MANUAL CHANGES MADE: YES NO YES NO YES NO
PROJECT MANAGER
ENGINEERING MANAGER
AREA PROJECTENGINEER
REFERENCE DRAWINGS
SAFETY SHARE:
APPROVAL DATE
CONTRACT
NO.
SAFETY SHARE :
BA6CVA1.IGR
NOTICE: THIS DRAWING HAS NOT BEEN PUBLISHED AND IS THE SOLE
PROPERTY OF FLUOR AND IS LENT TO THE BORROWER FOR THEIR
CONFIDENTIAL USE ONLY, AND IN CONSIDERATION OF THE LOAN OF THIS
DRAWING, THE BORROWER PROMISES AND AGREES TO RETURN IT UPON
REQUEST AND AGREES THAT IT WILL NOT BE REPRODUCED, COPIED LENT
OR OTHERWISE DISPOSED OF DIRECTLY OR INDIRECTLY, NOR USED FOR
ANY OTHER PURPOSE OTHER THAN WHICH IT IS FURNISHED.
NONE
Apr 2011
240K-C2-
3310
00808
XA
3310
00823 A
SI
3310
00825
ZSHH
A,B
3310
00803
SDI
3310
00826 A
TI
3310
00803 B
ST
3310
00821
HSS
HH, P1
H, P2
3310
00802
HSA
3310
00822
HSS
3310
00806 A
TI
RHS
C2-3310-ST-304
HH, P1
H, P2
RHS
A,B
A,B
3310
00803 B
SE
3310
00827 A
TI
3310
00807 B
TE
HH, P1
H, P2
HH, P1
H, P2
3310
00825
ZSH
LHS
3310
00801
HSA
RHS
3310
00827 A
TE
3310
00830
WIT
LHS H, P1
A,B
C2-3310-ST-336
3310
00826 A
TE
C2-3310-SL-312
RHS
3310
00824
ZAHH
A,B
P1
3310
00830
WE
TEAR
LHS
3310
00808 A
XS
3310
00823 A
SE
SIZE:
C2-3310-ST-304
BALL MILL SCREEN FEED CHUTE
3310
00804
ZSHH
3310
00806 B
TI
3310
00806 A
TE
LHS
HH, P1
H, P2
RHS
SIZE:
C2-3310-SL-312
BALL MILL SCREEN FEEDER BELT SCALE
A,B
C,D
SIZE:
C2-3310-ST-336
BALL MILL SCREEN FEED CONVEYOR HEAD CHUTE
3310
00824
ZSHH
3310
00803 B
SI
LHS
3310
00827 B
TI
3310
00822
HSA
C2-3310-FE-302
3310
00824
ZSH
3310
00803 A
SE
A,B
A,B
RHS
A,B
A,B
3310
00803 A
SI
3310
00806 B
TE
RHS
3310
00803 A
ST
3310
00827 B
TE
A,B
P1
HH, P1
H, P2
3310
00825
ZAHH
3310
00801
HSS
3310
00807 A
TI
3310
00826 B
TI HH, P1
H, P2
3310
00823 A
ST
3310
00805
ZSH
3310
00802
HSS
3310
00807 A
TE
C,D
RHS
HH, P1
H, P2
3310
00821
HSA
3310
00826 B
TE
A-B
3310
00807 B
TI
LHS
3310
00804
ZSH
A,B
A-B
LHS
3310
00805
ZSHH
3310
00830
WI
P1
P1
3310
00830
SE
3310
00808 B
XS
LHS
RHS
P1
3310
00804
ZSH
3310
00805
ZSH
C2-3310-CV-065
3310
00823
SDI
H, P1
3310
00815 B
LSH
3310
00815 B
LAH
P1
3310
00815 B
LE
3310
00815 A
LSH
3310
00815 A
LAH
P1
3310
00815 A
LE
3310
00835 B
LSH
3310
00835 B
LAH
P1
3310
00835 B
LE
3310
00835 A
LSH
3310
00835 A
LAH
P1
3310
00835 A
LE
3310
00823 B
SI
3310
00823 B
SE
3310
00823 B
ST
TERTIARY CRUSHER
BALL MILL FEED SURGE BIN,
C2-3310-BN-301
1516 3300-25J-007
WATER RATIO CONTROLLER,
3310-FFFIC-00921
1630 3300-25J-009
TERTIARY CRUSHER
BALL MILL SCREEN FEED
BOX, C2-3310-BX-308
1631 3300-25J-009
T5
V
ES
V
V
V
ES
ES
ES
V
V
V
ES
V
ES
ES
V
ES
ES
AG
KM
LT
ISSUED FOR CLIENT REVIEW
23-Dec-11
B
RP
ISSUED FOR COMBINED REVIEW
29-Jun-11
A
12/23/2011
K. MUNDY
A. GUNSON
W. BIE
L. TAMELIN
12/21/2011
3:19:10
PM
WBS: 3310
B
PIPING AND INSTRUMENTATION DIAGRAM
BALL MILL FEED
3300-25J-008
SCREEN FEEDER 302
3310
00804
ZSHH
3310
00805
ZSHH
V
V V
V
RHS LHS
A,B
RHS LHS
LHS
RHS
RHS LHS
SIZE:
MOTOR:
C2-3310-FE-302
BALL MILL SCREEN FEEDER
SIZE: 2134 mm x 42 m L
MOTOR: 112.00 kW
C2-3310-CV-065
BALL MIL SCREEN FEED CONVEYOR NO. 6
C2-3310-ST-356
SIZE:
C2-3310-ST-356
BALL MILL SCREEN FEED CONVEYOR SKIRT
3310
00824
ZAH
3310
00825
ZAH
LHS
A,B
P1
P1
P2 P2
V
V
V
V
V
C,D
C,D
V
V
3310
00804
ZAHH
RHS
C,D
3310
00805
ZAHH
3310
00804
ZAH
3310
00805
ZAH
LHS
C,D
P1
P1
P2 P2
3310
00804
ZAHH
RHS
A,B
3310
00805
ZAHH
3310
00804
ZAH
3310
00805
ZAH
LHS
A,B
P1
P1
P2 P2
V
V
V
A,B
A,B
A,B
V
V
V
V
PRODUCT
PRODUCT
3310
00882
II
3310
00882 H
TI
BRG
REAR
H,P2
HH,P1
3310
00882 G
TI
BRG
FRONT
H,P2
HH,P1
3310
00882 G
TE
3310
00882
XA
3310
00882 H
TE
V V
3310
00882
HS 3310
00811
XA
+
J/SP
FAULT
AFD
GEAR
REDUCER
3310
00892
XA
3310
00892
HS
J/SP
3310
00892
II
FAULT
3310
00831
XA
+
3310
00841
VE
3310
00841
VT
3310
00843
TE
3310
00842
LE
3310
00842
LSL
3310
00842
LA
3310
00841
VI
ES
V V V
V
V
V
H, P2
HH, P1 3310
00843
TI
L, P2
H, P2
HH, P1
T4
NOTE:
1. THE BALL MILL SCREEN FEEDER AND BALL MILL SCREEN FEED CONVEYOR DUST
SUPPRESSION SYSTEM WILL BE FURTHER DEFINED IN REVISIONS. SPRAY WATER
WILL BE SUPPLIED BY THE PROCESS WATER SYSTEM.
3310
09901
FFFIC
3310
00924
LAH
3310
00991
II
3310
00903
VAL
3310
00921
FIC
3310
00924
LSH
3310
00991
HS
3310
09901
FIC
3310
00922
FIC
3310
00923
VE
3310
00921
FIT
3310
00981
II
3310
00923
VT
3310
00902
FIC
3310
09901
FIT
M
3310
00991
XA
M
3310
00904
LAH
3310
00902
FIT
3310
00921
FFFIC
3310
00923
VSL
3310
00981
HS
3310
00904
LSH
3310
00922
FIT
3310
00903
VT
M
3310
00981
XA
M
3310
00903
VE
3310
00903
VSL
3310
00923
VAL
J/SP
FAULT
P1
P2
P1
J/SP
P2
FAULT
3310
00902
FV
+
3310-WR-1403-C1A-2"-N
3310-WR-1405-C1A-2"-N
3310-WR-1392-C1A-2"-N
3310-WR-1384-C1A-20"-N
SIZE:
C2-3310-ST-308
BALL MILL FEED SCREEN UNDERSIZE CHUTE
3310
09901
FV
+
C2-3310-ST-307
SIZE:
C2-3310-ST-305
BALL MILL SCREEN OVERSIZE CHUTE
3310
00921
FV
+
3310-WR-1406-C1A-2"-N
3310-WR-1404-C1A-2"-N
3310-WR-1389-C1A-2"-N
3310-WR-1402-C1A-2"-N
3310
00921
FE
+
3310-WR-1399-C1A-8"-N
3310-WR-1387-C1A-8"-N
4"
C2-3310-ST-306
10"
C2-3310-BX-308
4"
3310
00922
FE
+
SIZE:
C2-3310-ST-306
BALL MILL SCREEN OVERSIZE CHUTE
3310-WR-1396-C1A-20"-N
24"x20"
C2-3310-ST-305
3310-WR-1093-C1A-8"-N
3310
00922
FV
+
24"x10"
3310-WR-1091-C1A-24"-N
3310-WR-1407-C1A-2"-N
3310-WR-1393-C1A-2"-N
10"
3310-WR-1391-C1A-2"-N
24"x20"
3310-WR-1094-C1A-24"-N
3310-WR-1092-C1A-8"-N
24"x10"
SIZE:
C2-3310-BX-307
BALL MILL SCREEN FEED BOX
3310-WR-1394-C1A-2"-N
C2-3310-SC-302
10"
10"
4"
C2-3310-BX-307
3310-WR-1390-C1A-2"-N
SIZE:
C2-3310-ST-307
BALL MILL FEED SCREEN UNDERSIZE CHUTE
3310
00902
FE
+
3310-WR-1395-C1A-2"-N
C2-3310-ST-308
3310-WR-1401-C1A-2"-N
24"x10"
C2-3310-SC-301
SIZE:
C2-3310-BX-308
BALL MILL SCREEN FEED BOX
24"x10"
D
4
F
B
A
3
2
1 5 6 8
E
7
C
REV.
APPROVED
CHK.
DES.
REV. DATE REVISION DESCRIPTION
CLIENT
LEAD ENGINEER
SCALE DRAWING NUMBER
CHECK DESIGN CHECK DRAWING
DESIGNED BY DRAWN BY
APPROVAL DATE
APPROVAL DATE
APPROVED
CHK.
DES.
REV. DATE REVISION DESCRIPTION REFERENCE DRAWING No.
1:100
0
1:200
5m
10m
0
5m
10m
15m
20m
1:500
10m
0
20m
30m
40m
50m
1:1000
0
100m
50m
1:20
0
0.5m
1m
1.5m
2m
0
1:25
0.5m
1m
1.5m
1:33
1/3
2.5m
2m
0
1m
2m
3m
0
1:50
1m
2m
3m
4m
5m
CAD FILE NAME: P:0CAD000SPEM**
MODEL UPDATED:
DWG. FILE UPDATED:
MANUAL CHANGES MADE: YES NO YES NO YES NO
PROJECT MANAGER
ENGINEERING MANAGER
AREA PROJECTENGINEER
REFERENCE DRAWINGS
SAFETY SHARE:
APPROVAL DATE
CONTRACT
NO.
SAFETY SHARE :
BA6CVA1.IGR
NOTICE: THIS DRAWING HAS NOT BEEN PUBLISHED AND IS THE SOLE
PROPERTY OF FLUOR AND IS LENT TO THE BORROWER FOR THEIR
CONFIDENTIAL USE ONLY, AND IN CONSIDERATION OF THE LOAN OF THIS
DRAWING, THE BORROWER PROMISES AND AGREES TO RETURN IT UPON
REQUEST AND AGREES THAT IT WILL NOT BE REPRODUCED, COPIED LENT
OR OTHERWISE DISPOSED OF DIRECTLY OR INDIRECTLY, NOR USED FOR
ANY OTHER PURPOSE OTHER THAN WHICH IT IS FURNISHED.
NONE
Apr 2011
240K-C2-
BALL MILL SCREEN O/S
BALL MILL SCREEN OVERSIZE
CONVEYOR NO. 1,
1306 3300-25J-020
BALL MILL SCREEN O/S
BALL MILL SCREEN OVERSIZE
CONVEYOR NO. 1,
1376 3300-25J-020
BALL MILL SCREEN U/S
PRIMARY CYCLONE FEED
SUMP NO. 3, C2-3310-BX-301
1620 3300-25J-032
BALL MILL SCREEN U/S
PRIMARY CYCLONE FEED
SUMP NO. 3, C2-3310-BX-301
1621 3300-25J-032
C2-3310-CV-064
FEED TONNAGE,
3310-WI-00730
1519 3300-25J-007
TERTIARY CRUSHER
SCREEN FEED CONVEYOR
NO. 5, C2-3310-CV-064
1518 3300-25J-007
C2-3310-CV-065
FEED TONNAGE,
3310-WI-00830
1630 3300-25J-008
TERTIARY CRUSHER
SCREEN FEED CONVEYOR
NO. 6, C2-3310-CV-065
1631 3300-25J-008
PROCESS WATER
1636
3900-25J-014
PROCESS WATER
1635
3900-25J-014
PROCESS WATER
1634
3900-25J-014
PROCESS WATER
1633
3900-25J-014
T1
T1
ES
ES
ES
ES
AG
KM
LT
ISSUED FOR CLIENT REVIEW
23-Dec-11
B
RP
ISSUED FOR COMBINED REVIEW
29-Jun-11
A
12/23/2011
K. MUNDY
A. GUNSON
W. BIE
L. TAMELIN
12/21/2011
3:32:25
PM
WBS: 3310
B
PIPING AND INSTRUMENTATION DIAGRAM
BALL MILL FEED
3300-25J-009
SCREENS 301 AND 302
3310
09901
FE
+
SIZE: 3.6 m X 8.5 m
MOTOR:
C2-3310-SC-302
BALL MILL FEED SCREEN
SIZE: 3.6 m X 8.5 m
MOTOR:
C2-3310-SC-301
BALL MILL FEED SCREEN
FC
FC
FC
FC
PRODUCT
PRODUCT
C2-3310-CV-019
C2-3310-CV-019
ES
3310-WR-1092-C1A-8"-N
V V V
3310-WR-1093-C1A-8"-N
ES
V V V
4"
4"
4"
4"
4"
D
4
F
B
A
3
2
1 5 6 8
E
7
C
REV.
APPROVED
CHK.
DES.
REV. DATE REVISION DESCRIPTION
CLIENT
LEAD ENGINEER
SCALE DRAWING NUMBER
CHECK DESIGN CHECK DRAWING
DESIGNED BY DRAWN BY
APPROVAL DATE
APPROVAL DATE
APPROVED
CHK.
DES.
REV. DATE REVISION DESCRIPTION REFERENCE DRAWING No.
1:100
0
1:200
5m
10m
0
5m
10m
15m
20m
1:500
10m
0
20m
30m
40m
50m
1:1000
0
100m
50m
1:20
0
0.5m
1m
1.5m
2m
0
1:25
0.5m
1m
1.5m
1:33
1/3
2.5m
2m
0
1m
2m
3m
0
1:50
1m
2m
3m
4m
5m
CAD FILE NAME: P:0CAD000SPEM**
MODEL UPDATED:
DWG. FILE UPDATED:
MANUAL CHANGES MADE: YES NO YES NO YES NO
PROJECT MANAGER
ENGINEERING MANAGER
AREA PROJECTENGINEER
REFERENCE DRAWINGS
SAFETY SHARE:
APPROVAL DATE
CONTRACT
NO.
SAFETY SHARE :
BA6CVA1.IGR
NOTICE: THIS DRAWING HAS NOT BEEN PUBLISHED AND IS THE SOLE
PROPERTY OF FLUOR AND IS LENT TO THE BORROWER FOR THEIR
CONFIDENTIAL USE ONLY, AND IN CONSIDERATION OF THE LOAN OF THIS
DRAWING, THE BORROWER PROMISES AND AGREES TO RETURN IT UPON
REQUEST AND AGREES THAT IT WILL NOT BE REPRODUCED, COPIED LENT
OR OTHERWISE DISPOSED OF DIRECTLY OR INDIRECTLY, NOR USED FOR
ANY OTHER PURPOSE OTHER THAN WHICH IT IS FURNISHED.
NONE
Apr 2011
240K-C2-
PLANT AIR
1528 3900-25J-022
TERTIARY CRUSHER
BALL MILL SCREEN FEEDER,
C2-3310-FE-402
1529 3300-25J-011
TERTIARY CRUSHER
BALL MILL SCREEN FEED
BOX, C2-3310-BX-407
1531 3300-25J-012
WATER CONTROLLER RATIO,
3310-FFFIC-01201
1532 3300-25J-012
AG
KM
LT
ISSUED FOR CLIENT REVIEW
23-Dec-11
B
RP
ISSUED FOR COMBINED REVIEW
29-Jun-11
A
12/23/2011
K. MUNDY
A. GUNSON
W. BIE
L. TAMELIN
12/21/2011
3:44:17
PM
WBS: 3310
B
PIPING AND INSTRUMENTATION DIAGRAM
BALL MILL FEED
3300-25J-010
SCREEN FEEDER 401
TERTIARY CRUSHER
HRGR PRODUCT CONVEYOR
NO. 2, C2-3230-CV-028
1548 3200-25J-076
TERTIARY CRUSHER
C2-3310-BN-501
1527 3300-25J-013
V
M
LHS
3310
01005
ZSH
3310
01005
ZSH
3310
01023 A
SI
3310
01004
ZSH
3310
01004
ZSH
3310
01037
LAL
3310
01037
LSL
3310
01081
HS
3310
01015 A
LAH
3310
01015 A
LSH
3310
01016 A
LI
3310
01016
LIT
3310
01016
LI
3310
01016
LE
3310
01017
LAL
3310
01017
LSL
3310
01036 A
LI
3310
01026 A
TI HH, P1
H, P2
3310
01036
LIT
3310
01081
XA
3310
01026 A
TE
3310
01030
WIT
3310
01024
ZAH
3310
01030
WE
3310
01023 A
ST
3310
01023 A
SE
3310
01027 B
TE
3310
01036
LE
3310
01003 A
SI
3310
01007 B
TE
3310
01003 B
SE
3310
01006 B
TI HH, P1
H, P2
3310
01008
XA P1
3310
01006 B
TE
3310
01006 A
TI HH, P1
H, P2
3310
01002
HSA
3310
01026 B
TI
3310
01006 A
TE
3310
01008 B
XS
3310
01004
ZSHH
LHS
3310
01008 A
XS
3310
01005
ZSHH
C,D
RHS
3310
01005
ZSHH
3310
01003 A
ST
3310
00101
HSS
3310
01003 B
ST
3310
01003
SDI
3310
01026 B
TE
3310
01035 A
LAH
3310
01025
ZAH
P1
3310
01022
HSA
LHS
3310
01081
II
3310
01036
LI
HH, P1
H, P2
L, P2
3310
01002
HSS
RHS
3310
01003 B
SI
3310
01007 B
TI HH, P1
H, P2
3310
01004
ZAHH
3310
01003 A
SE
3310
01005
ZAHH
3310
01007 A
TI HH, P1
H, P2
3310
01007 A
TE
3310
01021
HSA
3310
01035 A
LSH
3310
01021
HSS
3310
01025
ZSHH
A,B
3310
01022
HSS
RHS
3310
01025
ZSH
3310
01024
ZSHH
3310
01024
ZSH
LHS
A,B
3310
01004
ZSHH
LHS
3310
00101
HSA
3310
01027 A
TI
HH, P1
H, P2
3310
01027 A
TE
3310
01027 B
TI
3310
01030
WI
P1
A,B
P1
A-B RHS
TEAR
A,B C,D
RHS
A,B
P1
LHS
A,B
P1
RHS
RHS
H, P1
LHS
P1
A-B
LHS
A,B
P1
P1
A,B
LHS
A,B
H, P1
RHS
HH, P1
H, P2
HH, P1
H, P2
RHS
P2
A,B
A,B
RHS
A,B
FAULT
P1
ST/SP
HH, P1
H, P2
L, P2
P1
A,B
C2-3310-DC-176
C2-3310-ST-402
C2-3310-ST-401
C2-3310-ST-403
C2-3310-FA-176
C2-3310-ST-337
C2-3310-SL-411
C2-3310-FE-401
C2-3310-CV-066
3310-AP-1306-C1A-2"-N
C2-3310-BN-401
SIZE:
C2-3310-DC-176
BALL MILL FEED BIN DUST COLLECTOR
SIZE: 8000 t
C2-3310-BN-401
BALL MILL FEED SURGE BIN
SIZE:
C2-3310-ST-401
BALL MILL SCREEN FEEDER SKIRT
SIZE:
C2-3310-ST-402
BALL MILL SCREEN FEEDER SKIRT
SIZE:
C2-3310-ST-403
BALL MILL SCREEN FEED CHUTE
SIZE:
C2-3310-SL-411
BALL MILL SCREEN FEEDER BELT SCALE
SIZE:
C2-3310-ST-337
BALL MILL SCREEN FEED CONVEYOR HEAD CHUTE
TO ATMOSPHERE
3310
01023 B
SE
3310
01023 B
ST
3310
01023 B
SI
3310
01023
SDI
H, P1
3310
01035 A
LE
3310
01035 B
LE
3310
01035 B
LSH
3310
01035 B
LAH H, P1
3310
01015 A
LE
3310
01015 B
LE
3310
01015 B
LSH
3310
01015 B
LAH P1
BIN CONTINUED ON
PID 3310-25J-004
T5
V
V
ES
V
ES
V
ES
ES
ES
V
V
V
V
ES
V
V
V
ES
V
ES
ES
ES
ES
V
LHS
P2
A,B
V
RHS LHS
LHS
A,B
LHS
RHS LHS
RHS
3310
01030
SE
C2-3310-ST-357
C2-3310-ST-431 C2-3310-ST-432
SIZE:
C2-3310-ST-431
BALL MILL FEED BIN INSERT
SIZE:
C2-3310-ST-432
BALL MILL FEED BIN INSERT
SIZE: 2134 mm X 42 m L
MOTOR: 112.00 kW
C2-3310-CV-066
BALL MILL SCREEN FEED CONVEYOR NO. 7
SIZE:
MOTOR:
C2-3310-FE-401
BALL MILL SCREEN FEEDER
SIZE:
MOTOR:
C2-3310-FA-176
BALL MILL FEED BIN DUST COLLECTOR FAN
SIZE:
C2-3310-ST-357
BALL MILL SCREEN FEED CONVEYOR SKIRT
PRODUCT
M
3310
01083
HS
3310
01083
XA
3310
01083
II
FAULT
ST/SP
C2-3310-DC-177
C2-3310-FA-177
TO ATMOSPHERE
SIZE:
C2-3310-DC-177
BALL MILL FEED BIN DUST COLLECTOR
SIZE:
MOTOR:
C2-3310-FA-177
BALL MILL FEED BIN DUST COLLECTOR FAN
V
V
V
V
V
V
A,B
A,B
3310
01005
ZAH
3310
01004
ZAH
P2
P2
3310
01004
ZAHH
3310
01005
ZAHH
RHS
C, D
P1
LHS
C, D
P1
3310
01005
ZAH
3310
01104
ZAH
P2
P2
V
C,D
V
C,D
V V
V
V
A,B
A,B
3310
01025
ZAHH
3310
01024
ZAHH
P1
PRODUCT
PRODUCT
3310-AP-1307-C1A-2"-N
PRODUCT
3310
01092
XA
3310
01092
HS
J/SP
3310
01092
II
FAULT
3310
01031
XA
+
3310
01041
VE
3310
01041
VT
3310
01043
TE
3310
01042
LE
3310
01042
LSL
3310
01042
LA
3310
01041
VI
ES
V V V
V
V
V
H, P2
HH, P1 3310
01043
TI
L, P2
H, P2
HH, P1
GEAR
REDUCER T4
3310
01082
II
3310
01082 H
TI
BRG
REAR
H,P2
HH,P1
3310
01082 G
TI
BRG
FRONT
H,P2
HH,P1
3310
01082 G
TE
3310
01082
XA
3310
01082 H
TE
V V
3310
01082
HS 3310
01011
XA
+
J/SP
FAULT
AFD
VENDOR
VENDOR
ES
3310
01019
PDAH
3310
01039
PDAH
NOTE:
1. THE BALL MILL SCREEN FEEDER AND BALL MILL SCREEN FEED CONVEYOR DUST
SUPPRESSION SYSTEM WILL BE FURTHER DEFINED IN REVISIONS. SPRAY WATER
WILL BE SUPPLIED BY THE PROCESS WATER SYSTEM.
D
4
F
B
A
3
2
1 5 6 8
E
7
C
REV.
APPROVED
CHK.
DES.
REV. DATE REVISION DESCRIPTION
CLIENT
LEAD ENGINEER
SCALE DRAWING NUMBER
CHECK DESIGN CHECK DRAWING
DESIGNED BY DRAWN BY
APPROVAL DATE
APPROVAL DATE
APPROVED
CHK.
DES.
REV. DATE REVISION DESCRIPTION REFERENCE DRAWING No.
1:100
0
1:200
5m
10m
0
5m
10m
15m
20m
1:500
10m
0
20m
30m
40m
50m
1:1000
0
100m
50m
1:20
0
0.5m
1m
1.5m
2m
0
1:25
0.5m
1m
1.5m
1:33
1/3
2.5m
2m
0
1m
2m
3m
0
1:50
1m
2m
3m
4m
5m
CAD FILE NAME: P:0CAD000SPEM**
MODEL UPDATED:
DWG. FILE UPDATED:
MANUAL CHANGES MADE: YES NO YES NO YES NO
PROJECT MANAGER
ENGINEERING MANAGER
AREA PROJECTENGINEER
REFERENCE DRAWINGS
SAFETY SHARE:
APPROVAL DATE
CONTRACT
NO.
SAFETY SHARE :
BA6CVA1.IGR
NOTICE: THIS DRAWING HAS NOT BEEN PUBLISHED AND IS THE SOLE
PROPERTY OF FLUOR AND IS LENT TO THE BORROWER FOR THEIR
CONFIDENTIAL USE ONLY, AND IN CONSIDERATION OF THE LOAN OF THIS
DRAWING, THE BORROWER PROMISES AND AGREES TO RETURN IT UPON
REQUEST AND AGREES THAT IT WILL NOT BE REPRODUCED, COPIED LENT
OR OTHERWISE DISPOSED OF DIRECTLY OR INDIRECTLY, NOR USED FOR
ANY OTHER PURPOSE OTHER THAN WHICH IT IS FURNISHED.
NONE
Apr 2011
240K-C2-
3310
01123 A
SI
3310
01125
ZSHH
A,B
3310
01103
SDI
3310
01126 A
TI
3310
01103 B
ST
3310
01121
HSS
HH, P1
H, P2
3310
01102
HSA
3310
01122
HSS
3310
01106 A
TI
RHS
C2-3310-ST-404
HH, P1
H, P2
RHS
A,B
A,B
3310
01103 B
SE
3310
01127 A
TI
3310
01107 B
TE
HH, P1
H, P2
HH, P1
H, P2
3310
01115 B
LSH
3310
01125
ZSH
LHS
3310
01101
HSA
3310
01115 B
LAH
RHS
3310
01127 A
TE
3310
01130
WIT
LHS
P1
A,B
C2-3310-ST-338
3310
01126 A
TE
C2-3310-SL-412
RHS
3310
01124
ZAHH
A,B
P1
3310
01130
WE
TEAR
LHS
3310
01108 A
XS
3310
01123 A
SE
SIZE:
C2-3310-ST-404
BALL MILL SCREEN FEED CHUTE
3310
01104
ZSHH
3310
01106 B
TI
3310
01106 A
TE
LHS
HH, P1
H, P2
RHS
SIZE:
C2-3310-SL-412
BALL MILL SCREEN FEEDER BELT SCALE
A,B
C,D
SIZE:
C2-3310-ST-338
BALL MILL SCREEN FEED CONVEYOR HEAD CHUTE
3310
01124
ZSHH
3310
01103 B
SI
LHS
3310
01127 B
TI
3310
01122
HSA
C2-3310-FE-402
3310
01124
ZSH
3310
01103 A
SE
A,B
A,B
RHS
A,B
A,B
3310
01103 A
SI
3310
01106 B
TE
RHS
3310
01103 A
ST
3310
01127 B
TE
A,B
P1
HH, P1
H, P2
3310
01125
ZAHH
3310
01101
HSS
LHS,
A,B
3310
01107 A
TI
3310
01126 B
TI HH, P1
H, P2
3310
01123 A
ST
3310
01105
ZSH
3310
01102
HSS
3310
01107 A
TE
C,D
RHS
HH, P1
H, P2
3310
01121
HSA
3310
01126 B
TE
A-B
3310
01107 B
TI
LHS
3310
01104
ZSH
A,B
A-B
LHS
3310
01105
ZSHH
3310
01130
WI
P1
P1
3310
01130
SE
P1
3310
01108 B
XS
LHS
RHS
3310
01108
XA P1
3310
01104
ZSH
3310
01105
ZSH
C2-3310-CV-067
3310
01115 B
LE
3310
01115 A
LSH
3310
01115 A
LAH
P1
3310
01115 A
LE
3310
01135 B
LSH
3310
01135 B
LAH
P1
3310
01135 B
LE
3310
01135 A
LSH
3310
01135 A
LAH
P1
3310
01135 A
LE
3310
01123 B
SI
3310
01123 B
SE
3310
01123 B
ST
3310
01123
SDI
H, P1
TERTIARY CRUSHER
BALL MILL FEED SURGE BIN,
C2-3310-BN-401
1529 3300-25J-010
TERTIARY CRUSHER
BALL MILL SCREEN FEED
BOX, C2-3310-BX-408
1683 3300-25J-012
WATER RATIO CONTROLLER,
3310-FFFIC-01221
1684 3300-25J-012
T5
ES
V
V V
V
ES
ES
ES
V
V
ES
V
ES
ES
V
V
V
AG
KM
LT
ISSUED FOR CLIENT REVIEW
23-Dec-11
B
RP
ISSUED FOR COMBINED REVIEW
29-Jun-11
A
12/23/2011
K. MUNDY
A. GUNSON
W. BIE
L. TAMELIN
12/23/2011
9:48:13
AM
WBS: 3310
B
PIPING AND INSTRUMENTATION DIAGRAM
BALL MILL FEED
3300-25J-011
SCREEN FEEDER 402
3310
01105
ZSHH
3310
01104
ZSHH
V
V V
V
RHS LHS
RHS LHS
A,B
LHS
RHS LHS
RHS
SIZE:
MOTOR:
C2-3310-FE-402
BALL MILL SCREEN FEEDER
SIZE: 2134 mm x 35 m L
MOTOR: 112.00 kW
C2-3310-CV-067
BALL MILL SCREEN FEED CONVEYOR NO. 8
C2-3310-ST-358
SIZE:
C2-3310-ST-358
BALL MILL SCREEN FEED CONVEYOR SKIRT
V
V
3310
01124
ZAH
3310
01125
ZAH
P1
P2 P2
P1
V
V
V
V
V
V
V
V A,B
A,B
A,B
V C,D
C,D
3310
01104
ZAHH
RHS
A,B
3310
01105
ZAHH
LHS,
A,B
3310
01104
ZAH
3310
01105
ZAH
P1
P2 P2
P1
3310
01104
ZAHH
RHS
C,D
3310
01105
ZAHH
LHS,
C,D
3310
01104
ZAH
3310
01105
ZAH
P1
P2 P2
P1
PRODUCT
PRODUCT
3310
01182
II
3310
01182 H
TI
BRG
REAR
H,P2
HH,P1
3310
01182 G
TI
BRG
FRONT
H,P2
HH,P1
3310
01182 G
TE
3310
01182
XA
3310
01182 H
TE
V V
3310
01182
HS 3310
01111
XA
+
J/SP
FAULT
AFD
ES
3310
01192
XA
3310
01192
HS
J/SP
3310
01192
II
FAULT
3310
01131
XA
+
3310
01141
VE
3310
01141
VT
3310
01143
TE
3310
01142
LE
3310
01142
LSL
3310
01142
LA
3310
01141
VI
ES
V V V
V
V
V
H, P2
HH, P1 3310
01143
TI
L, P2
H, P2
HH, P1
GEAR
REDUCER T4
NOTE:
1. THE BALL MILL SCREEN FEEDER AND BALL MILL SCREEN FEED CONVEYOR DUST
SUPPRESSION SYSTEM WILL BE FURTHER DEFINED IN REVISIONS. SPRAY WATER
WILL BE SUPPLIED BY THE PROCESS WATER SYSTEM.
D
4
F
B
A
3
2
1 5 6 8
E
7
C
REV.
APPROVED
CHK.
DES.
REV. DATE REVISION DESCRIPTION
CLIENT
LEAD ENGINEER
SCALE DRAWING NUMBER
CHECK DESIGN CHECK DRAWING
DESIGNED BY DRAWN BY
APPROVAL DATE
APPROVAL DATE
APPROVED
CHK.
DES.
REV. DATE REVISION DESCRIPTION REFERENCE DRAWING No.
1:100
0
1:200
5m
10m
0
5m
10m
15m
20m
1:500
10m
0
20m
30m
40m
50m
1:1000
0
100m
50m
1:20
0
0.5m
1m
1.5m
2m
0
1:25
0.5m
1m
1.5m
1:33
1/3
2.5m
2m
0
1m
2m
3m
0
1:50
1m
2m
3m
4m
5m
CAD FILE NAME: P:0CAD000SPEM**
MODEL UPDATED:
DWG. FILE UPDATED:
MANUAL CHANGES MADE: YES NO YES NO YES NO
PROJECT MANAGER
ENGINEERING MANAGER
AREA PROJECTENGINEER
REFERENCE DRAWINGS
SAFETY SHARE:
APPROVAL DATE
CONTRACT
NO.
SAFETY SHARE :
BA6CVA1.IGR
NOTICE: THIS DRAWING HAS NOT BEEN PUBLISHED AND IS THE SOLE
PROPERTY OF FLUOR AND IS LENT TO THE BORROWER FOR THEIR
CONFIDENTIAL USE ONLY, AND IN CONSIDERATION OF THE LOAN OF THIS
DRAWING, THE BORROWER PROMISES AND AGREES TO RETURN IT UPON
REQUEST AND AGREES THAT IT WILL NOT BE REPRODUCED, COPIED LENT
OR OTHERWISE DISPOSED OF DIRECTLY OR INDIRECTLY, NOR USED FOR
ANY OTHER PURPOSE OTHER THAN WHICH IT IS FURNISHED.
NONE
Apr 2011
240K-C2-
3310
01221
FIC
3310
01202
FE
+
3310
01221
FIT
10"
C2-3310-SC-401
M
M
C2-3310-ST-406
C2-3310-ST-408
C2-3310-SC-402
C2-3310-BX-408
3310
01201
FV
+
C2-3310-BX-407
4" 4"
24"x20"
10"
4"
3310
01201
FE
+
M
24"x10"
10"
24"x10"
24"x10" 24"x10"
3310
01222
FV
+
P2
3310
01222
FE
+
24"x20"
J/SP
3310
01221
FV
+
M
H, P1
10"
FAULT
FAULT
J/SP
P1
3310
01221
FE
+
P2
3310
01281
XA
3310
01204
LAH
3310
01202
FIC
3310
01202
FIT
C2-3310-ST-407
3310
01203
VSL
3310
01203
VE
3310
01203
VT
3310
01201
FIC
3310
01201
FIT
3310
01203
VAL
3310
01281
II
3310
01202
FV
+
3310
01204
LSH
3310
01281
HS
3310
01201
FFFIC
3310
01221
FFFIC
3310
01291
HS
3310
01291
XA
3310
01291
II
3310
01224
LAH
C2-3310-ST-405
3310
01224
LSH
3310
01223
VAL
3310
01223
VSL
3310
01223
VT
3310
01223
VE
3310
01222
FIC
3310
01222
FIT
BALL MILL SCREEN O/S
BALL MILL SCREEN OVERSIZE
CONVEYOR NO. 2,
1466 3300-25J-021
BALL MILL SCREEN O/S
BALL MILL SCREEN OVERSIZE
CONVEYOR NO. 2,
1467 3300-25J-021
TERTIARY CRUSHER
SCREEN FEED CONVEYOR
NO. 7, C2-3310-CV-066
1531 3300-25J-010
C2-3310-CV-066
FEED TONNAGE,
3310-WI-01030
1532 3300-25J-010
BALL MILL SCREEN U/S
PRIMARY CYCLONE FEED
SUMP NO. 4, C2-3310-BX-401
1653 3300-25J-036
BALL MILL SCREEN U/S
PRIMARY CYCLONE FEED
SUMP NO. 4, C2-3310-BX-401
1652 3300-25J-036
PROCESS WATER
1679
3900-25J-014
PROCESS WATER
1680
3900-25J-014
PROCESS WATER
1681
3900-25J-014
PROCESS WATER
1682
3900-25J-014
TERTIARY CRUSHER
SCREEN FEED CONVEYOR
NO. 8, C2-3310-CV-067
1683 3300-25J-011
C2-3310-CV-067
FEED TONNAGE,
3310-WI-01130
1684 3300-25J-011
T1
T1
3310-WR-1087-C1A-24"-N
3310-WR-1414-C1A-2"-N
SIZE:
C2-3310-ST-405
BALL MILL SCREEN OVERSIZE CHUTE
SIZE:
C2-3310-ST-408
BALL MILL FEED SCREEN UNDERSIZE CHUTE
SIZE:
C2-3310-BX-407
BALL MILL SCREEN FEED BOX
3310-WR-1418-C1A-2"-N
3310-WR-1417-C1A-2"-N
3310-WR-1084-C1A-24"-N
3310-WR-1411-C1A-8"-N
ES
SIZE:
C2-3310-ST-407
BALL MILL FEED SCREEN UNDERSIZE CHUTE
3310-WR-1423-C1A-8"-N
3310-WR-1429-C1A-2"-N
3310-WR-1431-C1A-2"-N
3310-WR-1413-C1A-2"-N
ES
3310-WR-1408-C1A-20"-N
ES
3310-WR-1426-C1A-2"-N
3310-WR-1419-C1A-2"-N
3310-WR-1430-C1A-2"-N
3310-WR-1085-C1A-8"-N
3310-WR-1427-C1A-2"-N
3310-WR-1086-C1A-8"-N
3310-WR-1428-C1A-2"-N
SIZE:
C2-3310-ST-406
BALL MILL SCREEN OVERSIZE CHUTE
SIZE:
C2-3310-BX-408
BALL MILL SCREEN FEED BOX
3310-WR-1416-C1A-2"-N
ES
3310-WR-1425-C1A-2"-N
3310-WR-1420-C1A-20"-N
3310-WR-1415-C1A-2"-N
AG
KM
LT
ISSUED FOR CLIENT REVIEW
23-Dec-11
B
RP
ISSUED FOR COMBINED REVIEW
29-Jun-11
A
12/23/2011
K. MUNDY
A. GUNSON
W. BIE
L. TAMELIN
12/21/2011
4:12:23
PM
WBS: 3310
B
PIPING AND INSTRUMENTATION DIAGRAM
BALL MILL FEED
3300-25J-012
SCREENS 401 AND 402
SIZE: 3.6 m X 8.5 m
MOTOR:
C2-3310-SC-402
BALL MILL FEED SCREEN
SIZE: 3.6 m X 8.5 m
MOTOR:
C2-3310-SC-401
BALL MILL FEED SCREEN
FC
FC
FC
FC
PRODUCT
PRODUCT
C2-3310-CV-029
C2-3310-CV-029
ES
3310-WR-1085-C1A-8"-N
V V V
3310-WR-1086-C1A-8"-N
ES
V V V
4"
4"
4"
4"
4"
D
4
F
B
A
3
2
1 5 6 8
E
7
C
REV.
APPROVED
CHK.
DES.
REV. DATE REVISION DESCRIPTION
CLIENT
LEAD ENGINEER
SCALE DRAWING NUMBER
CHECK DESIGN CHECK DRAWING
DESIGNED BY DRAWN BY
APPROVAL DATE
APPROVAL DATE
APPROVED
CHK.
DES.
REV. DATE REVISION DESCRIPTION REFERENCE DRAWING No.
1:100
0
1:200
5m
10m
0
5m
10m
15m
20m
1:500
10m
0
20m
30m
40m
50m
1:1000
0
100m
50m
1:20
0
0.5m
1m
1.5m
2m
0
1:25
0.5m
1m
1.5m
1:33
1/3
2.5m
2m
0
1m
2m
3m
0
1:50
1m
2m
3m
4m
5m
CAD FILE NAME: P:0CAD000SPEM**
MODEL UPDATED:
DWG. FILE UPDATED:
MANUAL CHANGES MADE: YES NO YES NO YES NO
PROJECT MANAGER
ENGINEERING MANAGER
AREA PROJECTENGINEER
REFERENCE DRAWINGS
SAFETY SHARE:
APPROVAL DATE
CONTRACT
NO.
SAFETY SHARE :
BA6CVA1.IGR
NOTICE: THIS DRAWING HAS NOT BEEN PUBLISHED AND IS THE SOLE
PROPERTY OF FLUOR AND IS LENT TO THE BORROWER FOR THEIR
CONFIDENTIAL USE ONLY, AND IN CONSIDERATION OF THE LOAN OF THIS
DRAWING, THE BORROWER PROMISES AND AGREES TO RETURN IT UPON
REQUEST AND AGREES THAT IT WILL NOT BE REPRODUCED, COPIED LENT
OR OTHERWISE DISPOSED OF DIRECTLY OR INDIRECTLY, NOR USED FOR
ANY OTHER PURPOSE OTHER THAN WHICH IT IS FURNISHED.
NONE
Apr 2011
240K-C2-
PLANT AIR
1550 3900-25J-022
TERTIARY CRUSHER
BALL MILL SCREEN FEEDER,
C2-3310-FE-502
1552 3300-25J-014
TERTIARY CRUSHER
BALL MILL SCREEN FEED
BOX, C2-3310-BX-507
1554 3300-25J-015
WATER RATIO CONTROLLER,
3310-FFFIC-01501
1555 3300-25J-015
AG
KM
LT
ISSUED FOR CLIENT REVIEW
23-Dec-11
B
RP
ISSUED FOR COMBINED REVIEW
29-Jun-11
A
12/23/2011
K. MUNDY
A. GUNSON
W. BIE
L. TAMELIN
12/23/2011
9:51:16
AM
WBS: 3310
B
PIPING AND INSTRUMENTATION DIAGRAM
BALL MILL FEED
3300-25J-013
SCREEN FEEDER 501
TERTIARY CRUSHER
C2-3310-BN-601
1567 3300-25J-016
TERTIARY CRUSHER
HRGR PRODUCT CONVEYOR
NO. 2, C2-3230-CV-028
1527 3300-25J-010
V
M
LHS
3310
00105
ZSH
3310
01305
ZSH
3310
01323 A
SI
3310
01304
ZSH
3310
01304
ZSH
3310
01337
LAL
3310
01337
LSL
3310
01381
HS
3310
01315 A
LAH
3310
01315 A
LSH
3310
01316 A
LI
3310
01316
LIT
3310
01316
LI
3310
01316
LE
3310
01317
LAL
3310
01317
LSL
3310
01336 A
LI
3310
01326 A
TI HH, P1
H, P2
3310
01336
LIT
3310
01381
XA
3310
01326 A
TE
3310
01330
WIT
3310
01324
ZAH
3310
01330
WE
3310
01323 A
ST
3310
01323 A
SE
3310
01327 B
TE
3310
01336
LE
3310
01303 A
SI
3310
01307 B
TE
3310
01303 B
SE
3310
01306 B
TI HH, P1
H, P2
3310
01308
XA P1
3310
01306 B
TE
3310
01306 A
TI HH, P1
H, P2
3310
01302
HSA
3310
01326 B
TI
3310
01306 A
TE
3310
01308 B
XS
3310
01304
ZSHH
LHS
3310
01308 A
XS
3310
01305
ZSHH
C,D
RHS
3310
01305
ZSHH
3310
01303 A
ST
3310
01301
HSS
3310
01303 B
ST
3310
01303
SDI
3310
01326 B
TE
3310
01335 A
LAH
3310
01325
ZAH
P1
3310
01322
HSA
LHS
3310
01381
II
3310
01336
LI
HH, P1
H, P2
L, P2
3310
01302
HSS
RHS
3310
01303 B
SI
3310
01307 B
TI HH, P1
H, P2
3310
01304
ZAHH
3310
01303 A
SE
3310
01305
ZAHH
3310
01307 A
TI HH, P1
H, P2
3310
01307 A
TE
3310
01321
HSA
3310
01335 A
LSH
3310
01321
HSS
3310
01325
ZSHH
A,B
3310
01322
HSS
RHS
3310
01325
ZSH
3310
01324
ZSHH
3310
01324
ZSH
LHS
A,B
3310
01304
ZSHH
LHS
3310
01301
HSA
3310
01327 A
TI
HH, P1
H, P2
3310
01327 A
TE
3310
01327 B
TI
3310
01330
WI
P1
A,B
P1
A-B RHS
TEAR
A,B C,D
RHS
A,B
P1
LHS
A,B
P1
RHS
RHS
H, P1
LHS
P1
A-B
LHS
A,B
P1
P1
A,B
LHS
A,B
P1
RHS
HH, P1
H, P2
HH, P1
H, P2
RHS
P2
A,B
A,B
RHS
A,B
FAULT
P1
J/SP
HH, P1
H, P2
L, P2
P1
A,B
C2-3310-DC-401
C2-3310-ST-502
C2-3310-ST-501
C2-3310-ST-503
C2-3310-FA-401
C2-3310-ST-339
C2-3310-SL-511
C2-3310-FE-501
C2-3310-CV-068
3310-AP-1308-C1A-2"-N
C2-3310-BN-501
SIZE:
C2-3310-DC-401
BALL MILL FEED BIN DUST COLLECTOR (DRY)
SIZE: 8000 t
C2-3310-BN-501
BALL MILL FEED SURGE BIN
SIZE:
C2-3310-ST-501
BALL MILL SCREEN FEEDER SKIRT
SIZE:
C2-3310-ST-502
BALL MILL SCREEN FEEDER SKIRT
SIZE:
C2-3310-ST-503
BALL MILL SCREEN FEED CHUTE
SIZE:
C2-3310-SL-511
BALL MILL SCREEN FEEDER BELT SCALE
SIZE:
C2-3310-ST-339
BALL MILL SCREEN FEED CONVEYOR HEAD CHUTE
TO ATMOSPHERE
3310
01323 B
SE
3310
01323 B
ST
3310
01323 B
SI
3310
01323
SDI
H, P1
3310
01335 A
LE
3310
01335 B
LE
3310
01335 B
LSH
3310
01335 B
LAH P1
3310
01315 A
LE
3310
01315 B
LE
3310
01315 B
LSH
3310
01315 B
LAH P1
BIN CONTINUED ON
PID 3310-25J-004
T5
V
V
ES
V
ES
V
ES
ES
ES
V
V
V
V
ES
V
V
V
ES
V
ES
ES
ES
ES
V
LHS
P2
A,B
V
RHS LHS
LHS
A,B
LHS RHS LHS
RHS
3310
01330
SE
C2-3310-ST-359
C2-3310-ST-433 C2-3310-ST-434
SIZE:
C2-3310-ST-433
BALL MILL FEED BIN INSERT
SIZE:
C2-3310-ST-434
BALL MILL FEED BIN INSERT
SIZE: 2134 mm X 42 m L
MOTOR: 112.00 kW
C2-3310-CV-068
BALL MILL SCREEN FEED CONVEYOR NO. 9
SIZE:
MOTOR:
C2-3310-FE-501
BALL MILL SCREEN FEEDER
SIZE:
MOTOR:
C2-3310-FA-401
BALL MILL FEED BIN DUST COLLECTOR FAN
SIZE:
C2-3310-ST-359
BALL MILL SCREEN FEED CONVEYOR SKIRT
PRODUCT
M
3310
01383
HS
3310
01383
XA
3310
01383
II
FAULT
J/SP
C2-3310-DC-175
C2-3310-FA-175
TO ATMOSPHERE
SIZE:
C2-3310-DC-175
BALL MILL FEED BIN DUST COLLECTOR (DRY)
SIZE:
MOTOR:
C2-3310-FA-175
BALL MILL FEED BIN DUST COLLECTOR FAN
V
V
V
V
V
V
A,B
A,B
3310
01305
ZAH
3310
01304
ZAH
P2
P2
3310
01304
ZAHH
3310
01305
ZAHH
RHS
C, D
P1
LHS
C, D
P1
3310
01305
ZAH
3310
01304
ZAH
P2
P2
V
C,D
V
C,D
V V
V
V
A,B
A,B
3310
01325
ZAHH
3310
01324
ZAHH
P1
PRODUCT
PRODUCT
3310-AP-1309-C1A-2"-N
PRODUCT
VENDOR
VENDOR
3310
01382
II
3310
01382 H
TI
BRG
REAR
H,P2
HH,P1
3310
01382 G
TI
BRG
FRONT
H,P2
HH,P1
3310
01382 G
TE
3310
01382
XA
3310
01382 H
TE
V V
3310
01382
HS 3310
01311
XA
+
J/SP
FAULT
AFD
ES
3310
01392
XA
3310
01392
HS
J/SP
3310
01392
II
FAULT
3310
01331
XA
+
3310
01341
VE
3310
01341
VT
3310
01343
TE
3310
01342
LE
3310
01342
LSL
3310
01342
LA
3310
01341
VI
ES
V V V
V
V
V
H, P2
HH, P1 3310
01343
TI
L, P2
H, P2
HH, P1
GEAR
REDUCER T4
3310
01319
PDAH
3310
01339
PDAH
NOTE:
1. THE BALL MILL SCREEN FEEDER AND BALL MILL SCREEN FEED CONVEYOR DUST
SUPPRESSION SYSTEM WILL BE FURTHER DEFINED IN REVISIONS. SPRAY WATER
WILL BE SUPPLIED BY THE PROCESS WATER SYSTEM.
T5
RHS LHS
LHS
3310
01404
ZSHH
3310
01405
ZSHH
3310
01415 B
LSH
3310
01423
SDI
H, P1
3310
01415 B
LE
3310
01407 B
TE
3310
01421
HSA LHS
3310
01430
WE
3310
01405
ZAHH
3310
01430
SE
3310
01435 B
LSH
3310
01423 B
ST
3310
01435 B
LE
3310
01407 A
TI
3310
01401
HSA
3310
01404
ZSH
LHS
3310
01415 A
LSH
3310
01435 A
LAH
P1
3310
01423 A
SI
3310
01427 A
TI HH, P1
H, P2
3310
01408 A
XS
TEAR
3310
01406 A
TE
3310
01426 B
TE
3310
01423 B
SI
3310
01435 B
LAH
P1
3310
01408 B
XS
LHS
3310
01405
ZSHH
3310
01422
HSS
RHS
3310
01425
ZSHH
A,B
3310
01401
HSS
3310
01406 B
TI HH, P1
H, P2
3310
01403 A
SI
3310
01427 B
TI
3310
01423 A
SE
3310
01426 A
TI HH, P1
H, P2
3310
01415 A
LE
3310
01403
SDI
3310
01403 A
SE
3310
01404
ZAHH
LHS
A,B
3310
01423 B
SE
3310
01415 A
LAH
P1
3310
01407 A
TE
3310
01403 A
ST
3310
01424
ZSH
LHS
A,B
3310
01430
WI
3310
01425
ZSH
RHS
3310
01423 A
ST
3310
01408
XA P1
3310
01403 B
SI
3310
01402
HSA
3310
01427 A
TE
3310
01426 B
TI HH, P1
H, P2
3310
01404
ZSHH
LHS
3310
01406 B
TE
RHS
3310
01405
ZSH
3310
01405
ZSH
3310
01426 A
TE
3310
01430
WIT
3310
01422
HSA RHS
A,B
3310
01435 A
LSH
3310
01404
ZSH
3310
01421
HSS
3310
01424
ZSHH
3310
01406 A
TI HH, P1
H, P2
3310
01402
HSS
RHS
3310
01415 B
LAH
P1
3310
01403 B
ST
3310
01403 B
SE
3310
01407 B
TI
3310
01435 A
LE
3310
01427 B
TE
WATER RATIO CONTROLLER,
3310-FFFIC-01521
1646 3300-25J-015
TERTIARY CRUSHER
BALL MILL FEED SURGE BIN,
C2-3310-BN-501
1552 3300-25J-013
TERTIARY CRUSHER
BALL MILL SCREEN FEED
BOX, C2-3310-BX-508
1645 3300-25J-015
A,B
A,B
P1
C,D
P1
RHS
H, P1
A,B
HH, P1
H, P2
RHS
RHS
A,B
A,B
A,B
P1
LHS
RHS
A,B
RHS
A,B
A,B
HH, P1
H, P2
LHS
A,B
LHS
HH, P1
H, P2
A,B
P1
LHS
RHS
SIZE:
C2-3310-ST-340
BALL MILL SCREEN FEED CONVEYOR HEAD CHUTE
C2-3310-ST-340
C2-3310-FE-502
SIZE:
C2-3310-ST-504
BALL MILL SCREEN FEED CHUTE
C2-3310-ST-504
C2-3310-SL-512
SIZE:
C2-3310-SL-512
BALL MILL SCREEN FEEDER BELT SCALE
C2-3310-CV-069
ES
V
ES
V
V
V
V
ES
V
ES
ES
ES
V
V
V
ES
ES
ES
V
AG
KM
LT
ISSUED FOR CLIENT REVIEW
23-Dec-11
B
RP
ISSUED FOR COMBINED REVIEW
29-Jun-11
A
12/23/2011
K. MUNDY
A. GUNSON
W. BIE
L. TAMELIN
12/21/2011
4:28:33
PM
WBS: 3310
B
PIPING AND INSTRUMENTATION DIAGRAM
BALL MILL FEED
3300-25J-014
SCREEN FEEDER 502
V
V
V
V
D
4
F
B
A
3
2
1 5 6 8
E
7
C
REV.
APPROVED
CHK.
DES.
REV. DATE REVISION DESCRIPTION
CLIENT
LEAD ENGINEER
SCALE DRAWING NUMBER
CHECK DESIGN CHECK DRAWING
DESIGNED BY DRAWN BY
APPROVAL DATE
APPROVAL DATE
APPROVED
CHK.
DES.
REV. DATE REVISION DESCRIPTION REFERENCE DRAWING No.
1:100
0
1:200
5m
10m
0
5m
10m
15m
20m
1:500
10m
0
20m
30m
40m
50m
1:1000
0
100m
50m
1:20
0
0.5m
1m
1.5m
2m
0
1:25
0.5m
1m
1.5m
1:33
1/3
2.5m
2m
0
1m
2m
3m
0
1:50
1m
2m
3m
4m
5m
CAD FILE NAME: P:0CAD000SPEM**
MODEL UPDATED:
DWG. FILE UPDATED:
MANUAL CHANGES MADE: YES NO YES NO YES NO
PROJECT MANAGER
ENGINEERING MANAGER
AREA PROJECTENGINEER
REFERENCE DRAWINGS
SAFETY SHARE:
APPROVAL DATE
CONTRACT
NO.
SAFETY SHARE :
BA6CVA1.IGR
NOTICE: THIS DRAWING HAS NOT BEEN PUBLISHED AND IS THE SOLE
PROPERTY OF FLUOR AND IS LENT TO THE BORROWER FOR THEIR
CONFIDENTIAL USE ONLY, AND IN CONSIDERATION OF THE LOAN OF THIS
DRAWING, THE BORROWER PROMISES AND AGREES TO RETURN IT UPON
REQUEST AND AGREES THAT IT WILL NOT BE REPRODUCED, COPIED LENT
OR OTHERWISE DISPOSED OF DIRECTLY OR INDIRECTLY, NOR USED FOR
ANY OTHER PURPOSE OTHER THAN WHICH IT IS FURNISHED.
NONE
Apr 2011
240K-C2-
RHS LHS
SIZE:
MOTOR:
C2-3310-FE-502
BALL MILL SCREEN FEEDER
SIZE: 2134 mm x 35 m L
MOTOR: 112.00 kW
C2-3310-CV-069
BALL MIL SCREEN FEED CONVEYOR NO. 10
C2-3310-ST-360
SIZE:
C2-3310-ST-360
BALL MILL SCREEN FEED CONVEYOR SKIRT
V
V
V
V A,B
A,B
A,B
V
V
V
3310
01405
ZAH
3310
01404
ZAH
P2
P2
P1
P1
3310
01405
ZAHH
3310
01404
ZAHH
LHS
C,D
RHS
C,D
3310
01405
ZAH
3310
01404
ZAH
P2
P2
P1
P1
C,D
C,D
C,D
V
V
V V
V
V
3310
01425
ZAHH
3310
01424
ZAHH
LHS
A,B
RHS
A,B
3310
01425
ZAH
3310
01424
ZAH
P2
P2
P1
P1
PRODUCT
PRODUCT
A,B
3310
01482
II
3310
01482 H
TI
BRG
REAR
H,P2
HH,P1
3310
01482 G
TI
BRG
FRONT
H,P2
HH,P1
3310
01482 G
TE
3310
01482
XA
3310
01482 H
TE
V V
3310
01482
HS 3310
01411
XA
+
J/SP
FAULT
AFD
GEAR
REDUCER
3310
01492
XA
3310
01492
HS
J/SP
3310
01492
II
FAULT
3310
01431
XA
+
3310
01441
VE
3310
01441
VT
3310
01443
TE
3310
01442
LE
3310
01442
LSL
3310
01442
LA
3310
01441
VI
ES
V V V
V
V
V
H, P2
HH, P1 3310
01443
TI
L, P2
H, P2
HH, P1
T4
NOTES:
1. THE BALL MILL SCREEN FEEDER AND BALL MILL SCREEN FEED CONVEYOR DUST SUPPRESSION
SYSTEM WILL BE FURTHER DEFINED IN REVISIONS. SPRAY WATER WILL BE SUPPLIED BY THE
PROCESS WATER SYSTEM.
T1
T1
3310
01524
LSH
3310
01504
LAH
3310
01503
VAL
3310
01591
XA
3310
01503
VE
3310
01523
VE
3310
01524
LAH
M
M
M
3310
01521
FFFIC
3310
01501
FIC
3310
01523
VSL
3310
01523
VAL
3310
01581
II
3310
01502
FIC
3310
01522
FIC
3310
01504
LSH
3310
01591
II
3310
01501
FIT
3310
01521
FIC
3310
01581
HS
3310
01501
FFFIC
3310
01522
FIT
M
3310
01502
FIT
3310
01503
VSL
3310
01521
FIT
3310
01591
HS
3310
01523
VT
3310
01503
VT
3310
01581
XA
PROCESS WATER
1649
3900-25J-014
BALL MILL SCREEN O/S
BALL MILL SCREEN OVERSIZE
CONVEYOR NO. 2,
1464 3300-25J-021
PROCESS WATER
1651
3900-25J-014
C2-3310-CV-069
FEED TONNAGE,
3310-WI-01430
1646 3300-25J-014
PROCESS WATER
1648
3900-25J-014
TERTIARY CRUSHER
SCREEN FEED CONVEYOR
NO. 9, C2-3310-CV-068
1554 3300-25J-013
BALL MILL SCREEN U/S
PRIMARY CYCLONE FEED
SUMP NO. 5, C2-3310-BX-501
1659 3300-25J-042
BALL MILL SCREEN U/S
PRIMARY CYCLONE FEED
SUMP NO. 5, C2-3310-BX-501
1656 3300-25J-042
C2-3310-CV-068
FEED TONNAGE,
3310-WI-01330
1555 3300-25J-013
PROCESS WATER
1647
3900-25J-014
TERTIARY CRUSHER
SCREEN FEED CONVEYOR
NO. 10, C2-3310-CV-069
1645 3300-25J-014
BALL MILL SCREEN O/S
BALL MILL SCREEN OVERSIZE
CONVEYOR NO. 2,
1465 3300-25J-021
P2
J/SP
FAULT
P1
P2
J/SP
FAULT
P1
3310
01501
FV
+
3310-WR-1441-C1A-2"-N
24"x20"
3310-WR-1143-C1A-8"-N
3310-WR-1141-C1A-24"-N
3310-WR-1454-C1A-2"-N
SIZE:
C2-3310-ST-505
BALL MILL SCREEN OVERSIZE CHUTE
3310
01521
FV
+
24"x10"
C2-3310-SC-501
3310-WR-1451-C1A-2"-N
10"
3310-WR-1437-C1A-2"-N
4"
SIZE:
C2-3310-ST-508
BALL MILL FEED SCREEN UNDERSIZE CHUTE
24"x10"
10"
3310-WR-1439-C1A-2"-N
3310-WR-1453-C1A-2"-N
3310-WR-1443-C1A-2"-N
4"
10"
3310-WR-1144-C1A-24"-N
SIZE:
C2-3310-ST-506
BALL MILL SCREEN OVERSIZE CHUTE
3310
01522
FE
+
C2-3310-ST-505
24"x10"
3310-WR-1455-C1A-2"-N
3310-WR-1442-C1A-2"-N
SIZE:
C2-3310-BX-507
BALL MILL SCREEN FEED BOX
3310-WR-1438-C1A-2"-N
SIZE:
C2-3310-ST-507
BALL MILL FEED SCREEN UNDERSIZE CHUTE
C2-3310-BX-508
C2-3310-ST-507
3310-WR-1450-C1A-2"-N
C2-3310-ST-508
3310
01522
FV
+
C2-3310-BX-507
C2-3310-SC-502
3310-WR-1432-C1A-20"-N
3310-WR-1435-C1A-8"-N
3310-WR-1142-C1A-8"-N
3310-WR-1447-C1A-8"-N
10"
3310-WR-1440-C1A-2"-N
3310
01502
FE
+
3310-WR-1449-C1A-2"-N
3310-WR-1452-C1A-2"-N
C2-3310-ST-506
3310
01501
FE
+
3310
01521
FE
+
24"x20"
3310
01502
FV
+
SIZE:
C2-3310-BX-508
BALL MILL SCREEN FEED BOX
3310-WR-1444-C1A-20"-N
24"x10"
4"
ES
ES
ES
ES
AG
KM
LT
ISSUED FOR CLIENT REVIEW
23-Dec-11
B
RP
ISSUED FOR COMBINED REVIEW
29-Jun-11
A
12/23/2011
K. MUNDY
A. GUNSON
W. BIE
L. TAMELIN
12/21/2011
4:26:15
PM
WBS: 3310
B
PIPING AND INSTRUMENTATION DIAGRAM
BALL MILL FEED
3300-25J-015
SCREENS 501 AND 502
D
4
F
B
A
3
2
1 5 6 8
E
7
C
REV.
APPROVED
CHK.
DES.
REV. DATE REVISION DESCRIPTION
CLIENT
LEAD ENGINEER
SCALE DRAWING NUMBER
CHECK DESIGN CHECK DRAWING
DESIGNED BY DRAWN BY
APPROVAL DATE
APPROVAL DATE
APPROVED
CHK.
DES.
REV. DATE REVISION DESCRIPTION REFERENCE DRAWING No.
1:100
0
1:200
5m
10m
0
5m
10m
15m
20m
1:500
10m
0
20m
30m
40m
50m
1:1000
0
100m
50m
1:20
0
0.5m
1m
1.5m
2m
0
1:25
0.5m
1m
1.5m
1:33
1/3
2.5m
2m
0
1m
2m
3m
0
1:50
1m
2m
3m
4m
5m
CAD FILE NAME: P:0CAD000SPEM**
MODEL UPDATED:
DWG. FILE UPDATED:
MANUAL CHANGES MADE: YES NO YES NO YES NO
PROJECT MANAGER
ENGINEERING MANAGER
AREA PROJECTENGINEER
REFERENCE DRAWINGS
SAFETY SHARE:
APPROVAL DATE
CONTRACT
NO.
SAFETY SHARE :
BA6CVA1.IGR
NOTICE: THIS DRAWING HAS NOT BEEN PUBLISHED AND IS THE SOLE
PROPERTY OF FLUOR AND IS LENT TO THE BORROWER FOR THEIR
CONFIDENTIAL USE ONLY, AND IN CONSIDERATION OF THE LOAN OF THIS
DRAWING, THE BORROWER PROMISES AND AGREES TO RETURN IT UPON
REQUEST AND AGREES THAT IT WILL NOT BE REPRODUCED, COPIED LENT
OR OTHERWISE DISPOSED OF DIRECTLY OR INDIRECTLY, NOR USED FOR
ANY OTHER PURPOSE OTHER THAN WHICH IT IS FURNISHED.
NONE
Apr 2011
240K-C2-
SIZE: 3.6 m X 8.5 m
MOTOR:
C2-3310-SC-502
BALL MILL FEED SCREEN
SIZE: 3.6 m X 8.5 m
MOTOR:
C2-3310-SC-501
BALL MILL FEED SCREEN
C2-3310-CV-029
C2-3310-CV-029
FC
FC
FC
FC
PRODUCT
PRODUCT
ES
3310-WR-1142-C1A-8"-N
V V V
3310-WR-1143-C1A-8"-N
ES
V
V
V
4"
4"
4"
4"
4"
LHS
M
M
T5
LHS
RHS
3310
01604
ZSH
3310
01623 A
SE
RHS
3310
01621
HSA
3310
01635 B
LE
3310
01605
ZSHH
A,B
3310
01604
ZSH
3310
01623 A
ST
3310
01605
ZAH
3310
01630
WE
3310
01607 A
TE
3310
01623 A
SI
3310
01605
ZSH
C,D
3310
01624
ZAH
3310
01635 A
LE
3310
01630
WI
3310
00105
ZSH
3310
01630
WIT
3310
01627 B
TI
3310
01626 A
TE
3310
01607 A
TI HH, P1
H, P2
3310
01681
XA
3310
01627 A
TE
3310
01627 A
TI
3310
01636
LIT
3310
01605
ZSHH
RHS
RHS
3310
01683
II
3310
01608 A
XS
3310
01601
HSA
3310
01605
ZAHH
3310
01603 A
SE
3310
01604
ZSHH
3310
01683
HS
3310
01683
XA
3310
00104
ZAHH
3310
01608 B
XS
3310
01604
ZSHH
LHS
3310
01606 A
TE
3310
01626 B
TI
3310
01624
ZSH
A,B
LHS
3310
01607 B
TI HH, P1
H, P2
3310
01623
SDI
3310
01604
ZAH
3310
01603 B
SI
3310
01602
HSA
3310
01623 B
SI
3310
01626 A
TI HH, P1
H, P2
3310
01606 A
TI HH, P1
H, P2
3310
01624
ZSHH
3310
01602
HSS
RHS
3310
01605
ZAH
3310
01606 B
TE
3310
01636 A
LI
3310
01625
ZSH
3310
01636
LI
HH, P1
H, P2
L, P2
3310
01623 B
ST
3310
01605
ZAHH
3310
01608
XA P1
3310
01617
LAL
3310
01615 B
LAH P1
3310
01681
II
3310
01617
LSL
3310
01623 B
SE
3310
01622
HSS
RHS
3310
01604
ZAHH
3310
01615 B
LE
3310
01616
LI
3310
01625
ZSHH
A,B
3310
01615 B
LSH
3310
01622
HSA
LHS
3310
01616
LE
3310
01606 B
TI HH, P1
H, P2
3310
01625
ZAH
LHS
P2
A,B
3310
01615 A
LE
3310
01616
LIT
3310
01635 A
LAH
3310
01621
HSS
3310
01630
SE
3310
01603 B
SE
3310
01624
ZAHH
P1
3310
01635 A
LSH
3310
01607 B
TE
3310
01616 A
LI
3310
01615 A
LSH
3310
01603 A
SI
3310
01615 A
LAH
3310
01636
LE
3310
01603
SDI
3310
01625
ZAHH
3310
01626 B
TE
3310
01681
HS
3310
01603 A
ST
3310
01635 B
LAH H, P1
3310
01601
HSS
3310
01637
LAL
3310
01603 B
ST
3310
01627 B
TE
RHS
3310
01637
LSL
3310
01635 B
LSH
3310
01604
ZAH
TERTIARY CRUSHER
BALL MILL SCREEN FEED
BOX, C2-3310-BX-607
1579 3300-25J-018
WATER RATIO CONTROLLER,
3310-FFFIC-01801
1580 3300-25J-018
TERTIARY CRUSHER
BALL MILL SCREEN FEEDER,
C2-3310-FE-602
1575 3300-25J-017
TERTIARY CRUSHER
HRGR PRODUCT CONVEYOR
NO. 2, C2-3230-CV-028
1567 3300-25J-013
PLANT AIR
1569 3900-25J-022
BIN CONTINUED ON
PID 3300-25J-013
A-B
A,B
P1
LHS
J/SP
A,B
H, P1
FAULT
A,B
RHS
LHS
C,D
H, P1
LHS
P1
A,B
P1
C,D
LHS
RHS
A,B
P1
LHS
HH, P1
H, P2
L, P2
C,D
J/SP
P2
FAULT
TEAR
A,B
P1
P2
RHS
A,B
A,B
A-B
PRODUCT
LHS
RHS
A,B
P1
RHS
P2
A,B
P1
HH, P1
H, P2
HH, P1
H, P2
LHS
C, D
P1
RHS
C, D
P1
P1
A,B
RHS
HH, P1
H, P2
H, P1
LHS
P2
A,B
P2
P1
LHS
A,B
P1
A,B
A,B
ES
V
V
ES
V
V
V
V
V
ES
ES
ES
V
V
V
V
ES
SIZE:
C2-3310-ST-341
BALL MILL SCREEN FEED CONVEYOR HEAD CHUTE
SIZE:
MOTOR:
C2-3310-FA-501
BALL MILL FEED BIN DUST COLLECTOR FAN
ES
SIZE:
C2-3310-SL-611
BALL MILL SCREEN FEEDER BELT SCALE
SIZE:
C2-3310-DC-501
BALL MILL FEED BIN DUST COLLECTOR (DRY)
ES
SIZE:
C2-3310-ST-601
BALL MILL SCREEN FEEDER SKIRT
V
V
V
ES
V
ES
SIZE: 8000 t
C2-3310-BN-601
BALL MILL FEED SURGE BIN
V
SIZE:
C2-3310-ST-603
BALL MILL SCREEN FEED CHUTE
V
SIZE:
C2-3310-ST-602
BALL MILL SCREEN FEEDER SKIRT
V
V
V
V
V
V
V
TO ATMOSPHERE
SIZE:
C2-3310-DC-601
BALL MILL FEED BIN DUST COLLECTOR (DRY)
V
ES
V
3310-AP-1310-C1A-2"-N
C2-3310-FE-601
V
C2-3310-BN-601
C2-3310-CV-070
C2-3310-SL-611
C2-3310-ST-341
C2-3310-FA-601
C2-3310-ST-603
AG
KM
LT
ISSUED FOR CLIENT REVIEW
23-Dec-11
B
RP
ISSUED FOR COMBINED REVIEW
29-Jun-11
A
12/23/2011
K. MUNDY
A. GUNSON
W. BIE
L. TAMELIN
12/22/2011
4:04:27
PM
WBS: 3310
B
PIPING AND INSTRUMENTATION DIAGRAM
BALL MILL FEED
3300-25J-016
SCREEN FEEDER 601
SIZE:
C2-3310-ST-361
BALL MILL SCREEN FEED CONVEYOR SKIRT
C2-3310-ST-601
TO ATMOSPHERE
C2-3310-FA-501
C2-3310-ST-436
C2-3310-ST-435
C2-3310-ST-361
C2-3310-DC-501
C2-3310-ST-602
C2-3310-DC-601
SIZE:
MOTOR:
C2-3310-FA-601
BALL MILL FEED BIN DUST COLLECTOR FAN
SIZE:
MOTOR:
C2-3310-FE-601
BALL MILL SCREEN FEEDER
SIZE: 2134 mm X 42 m L
MOTOR: 112.00 kW
C2-3310-CV-070
BALL MILL SCREEN FEED CONVEYOR NO. 11
SIZE:
C2-3310-ST-436
BALL MILL FEED BIN INSERT
SIZE:
C2-3310-ST-435
BALL MILL FEED BIN INSERT
D
4
F
B
A
3
2
1 5 6 8
E
7
C
REV.
APPROVED
CHK.
DES.
REV. DATE REVISION DESCRIPTION
CLIENT
LEAD ENGINEER
SCALE DRAWING NUMBER
CHECK DESIGN CHECK DRAWING
DESIGNED BY DRAWN BY
APPROVAL DATE
APPROVAL DATE
APPROVED
CHK.
DES.
REV. DATE REVISION DESCRIPTION REFERENCE DRAWING No.
1:100
0
1:200
5m
10m
0
5m
10m
15m
20m
1:500
10m
0
20m
30m
40m
50m
1:1000
0
100m
50m
1:20
0
0.5m
1m
1.5m
2m
0
1:25
0.5m
1m
1.5m
1:33
1/3
2.5m
2m
0
1m
2m
3m
0
1:50
1m
2m
3m
4m
5m
CAD FILE NAME: P:0CAD000SPEM**
MODEL UPDATED:
DWG. FILE UPDATED:
MANUAL CHANGES MADE: YES NO YES NO YES NO
PROJECT MANAGER
ENGINEERING MANAGER
AREA PROJECTENGINEER
REFERENCE DRAWINGS
SAFETY SHARE:
APPROVAL DATE
CONTRACT
NO.
SAFETY SHARE :
BA6CVA1.IGR
NOTICE: THIS DRAWING HAS NOT BEEN PUBLISHED AND IS THE SOLE
PROPERTY OF FLUOR AND IS LENT TO THE BORROWER FOR THEIR
CONFIDENTIAL USE ONLY, AND IN CONSIDERATION OF THE LOAN OF THIS
DRAWING, THE BORROWER PROMISES AND AGREES TO RETURN IT UPON
REQUEST AND AGREES THAT IT WILL NOT BE REPRODUCED, COPIED LENT
OR OTHERWISE DISPOSED OF DIRECTLY OR INDIRECTLY, NOR USED FOR
ANY OTHER PURPOSE OTHER THAN WHICH IT IS FURNISHED.
NONE
Apr 2011
240K-C2-
PRODUCT
PRODUCT
3310-AP-1311-C1A-2"-N
VENDOR
VENDOR
ES
3310
01682
II
3310
01682 H
TI
BRG
REAR
H,P2
HH,P1
3310
01682 G
TI
BRG
FRONT
H,P2
HH,P1
3310
01682 G
TE
3310
01682
XA
3310
01682 H
TE
V V
3310
01682
HS 3310
01611
XA
+
J/SP
FAULT
AFD
3310
01692
XA
3310
01692
HS
J/SP
3310
01692
II
FAULT
3310
01631
XA
+
3310
01641
VE
3310
01641
VT
3310
01643
TE
3310
01642
LE
3310
01642
LSL
3310
01642
LA
3310
01641
VI
ES
V V V
V
V
V
H, P2
HH, P1 3310
01643
TI
L, P2
H, P2
HH, P1
GEAR
REDUCER T4
3310
01619
PDAH
3310
01639
PDAH
NOTE:
1. THE BALL MILL SCREEN FEEDER AND BALL MILL SCREEN FEED CONVEYOR DUST
SUPPRESSION SYSTEM WILL BE FURTHER DEFINED IN REVISIONS. SPRAY WATER
WILL BE SUPPLIED BY THE PROCESS WATER SYSTEM.
D
4
F
B
A
3
2
1 5 6 8
E
7
C
REV.
APPROVED
CHK.
DES.
REV. DATE REVISION DESCRIPTION
CLIENT
LEAD ENGINEER
SCALE DRAWING NUMBER
CHECK DESIGN CHECK DRAWING
DESIGNED BY DRAWN BY
APPROVAL DATE
APPROVAL DATE
APPROVED
CHK.
DES.
REV. DATE REVISION DESCRIPTION REFERENCE DRAWING No.
1:100
0
1:200
5m
10m
0
5m
10m
15m
20m
1:500
10m
0
20m
30m
40m
50m
1:1000
0
100m
50m
1:20
0
0.5m
1m
1.5m
2m
0
1:25
0.5m
1m
1.5m
1:33
1/3
2.5m
2m
0
1m
2m
3m
0
1:50
1m
2m
3m
4m
5m
CAD FILE NAME: P:0CAD000SPEM**
MODEL UPDATED:
DWG. FILE UPDATED:
MANUAL CHANGES MADE: YES NO YES NO YES NO
PROJECT MANAGER
ENGINEERING MANAGER
AREA PROJECTENGINEER
REFERENCE DRAWINGS
SAFETY SHARE:
APPROVAL DATE
CONTRACT
NO.
SAFETY SHARE :
BA6CVA1.IGR
NOTICE: THIS DRAWING HAS NOT BEEN PUBLISHED AND IS THE SOLE
PROPERTY OF FLUOR AND IS LENT TO THE BORROWER FOR THEIR
CONFIDENTIAL USE ONLY, AND IN CONSIDERATION OF THE LOAN OF THIS
DRAWING, THE BORROWER PROMISES AND AGREES TO RETURN IT UPON
REQUEST AND AGREES THAT IT WILL NOT BE REPRODUCED, COPIED LENT
OR OTHERWISE DISPOSED OF DIRECTLY OR INDIRECTLY, NOR USED FOR
ANY OTHER PURPOSE OTHER THAN WHICH IT IS FURNISHED.
NONE
Apr 2011
240K-C2-
TERTIARY CRUSHER
BALL MILL SURGE BIN,
C2-3310-BN-601
1575 3300-25J-016
3310
01708
XA
3310
01723 A
SI
3310
01725
ZSHH
A,B
3310
01703
SDI
3310
01726 A
TI
3310
01703 B
ST
3310
01721
HSS
HH, P1
H, P2
3310
01702
HSA
3310
01722
HSS
3310
01706 A
TI
RHS
C2-3310-ST-604
HH, P1
H, P2
RHS
A,B
A,B
3310
01703 B
SE
3310
01727 A
TI
3310
01707 B
TE
HH, P1
H, P2
HH, P1
H, P2
3310
01725
ZSH
LHS
3310
01701
HSA
3310
01705
ZAHH
RHS
3310
01727 A
TE
3310
01730
WIT
LHS
H, P1
A,B
C2-3310-ST-342
3310
01726 A
TE
C2-3310-SL-612
RHS
LHS
A,B
A,B
P1
3310
01730
WE
TEAR
LHS
3310
01708 A
XS
3310
01723 A
SE
SIZE:
C2-3310-ST-604
BALL MILL SCREEN FEED CHUTE
RHS
A,B
3310
01704
ZSHH
3310
01706 B
TI
3310
01706 A
TE
LHS
HH, P1
H, P2
RHS
SIZE:
C2-3310-SL-612
BALL MILL SCREEN FEEDER BELT SCALE
A,B
C,D
SIZE:
C2-3310-ST-342
BALL MILL FEED SCREEN CONVEYOR HEAD CHUTE
3310
01724
ZSHH
3310
01703 B
SI
LHS
3310
01727 B
TI
3310
01722
HSA
C2-3310-FE-602
3310
01724
ZSH
3310
01703 A
SE
A,B
A,B
A,B
3310
01703 A
SI
3310
01706 B
TE
RHS
3310
01703 A
ST
3310
01727 B
TE
A,B
P1
HH, P1
H, P2
3310
01701
HSS
3310
01707 A
TI
3310
01726 B
TI HH, P1
H, P2
3310
01723 A
ST
3310
01705
ZSH
3310
01702
HSS
3310
01707 A
TE
C,D
RHS
HH, P1
H, P2
3310
01721
HSA
3310
01726 B
TE
A,B
3310
01707 B
TI
LHS
3310
01704
ZSH
A,B
A,B
LHS
3310
01705
ZSHH
3310
01730
WI
3310
01704
ZAHH
P1
P1
3310
01730
SE
3310
01708 B
XS
LHS
RHS
P1
3310
01704
ZSH
3310
01705
ZSH
C2-3310-CV-071
3310
01723
SDI
H, P1
3310
01715 B
LSH
3310
01715 B
LAH
P1
3310
01715 B
LE
3310
01715 A
LSH
3310
01715 A
LAH
P1
3310
01715 A
LE
3310
01735 B
LSH
3310
01735 B
LAH
P1
3310
01735 B
LE
3310
01735 A
LSH
3310
01735 A
LAH
P1
3310
01735 A
LE
3310
01723 B
SI
3310
01723 B
SE
3310
01723 B
ST
TERTIARY CRUSHER
BALL MILL SCREEN FEED
BOX, C2-3310-BX-608
1675 3300-25J-018
WATER RATIO CONTROLLER,
3310-FFFIC-01821
1676 3300-25J-018
T5
V
ES
V
V
V
V
ES
V
ES
V
ES
V
ES
ES
V
ES
V
ES
ES
AG
KM
LT
ISSUED FOR CLIENT REVIEW
23-Dec-11
B
RP
ISSUED FOR COMBINED REVIEW
29-Jun-11
A
12/23/2011
K. MUNDY
A. GUNSON
W. BIE
L. TAMELIN
12/21/2011
4:26:31
PM
WBS: 3310
B
PIPING AND INSTRUMENTATION DIAGRAM
BALL MILL FEED
3300-25J-017
SCREEN FEEDER 602
3310
01704
ZSHH
3310
01705
ZSHH
V
V V
V
RHS LHS
A,B
RHS LHS
LHS
RHS
RHS LHS
SIZE:
MOTOR:
C2-3310-FE-602
BALL MILL SCREEN FEEDER
SIZE: 2134 mm x 35 m L
MOTOR: 112.00 kW
C2-3310-CV-071
BALL MIL SCREEN FEED CONVEYOR NO. 12
C2-3310-ST-362
SIZE:
C2-3310-ST-362
BALL MILL SCREEN FEED CONVEYOR SKIRT
V
V V
V
V
V
V
V V
V
V
A,B
A,B
A,B
3310
01705
ZAH
3310
01704
ZAH
V
V
C,D
C,D
P1
P2 P2
P1
3310
01705
ZAHH
LHS
C,D
RHS
C,D
3310
01704
ZAHH
3310
01705
ZAH
3310
01704
ZAH
P1
P2 P2
P1
3310
01725
ZAHH
LHS
A,B
RHS
A,B
3310
01724
ZAHH
3310
01725
ZAH
3310
01724
ZAH
P1
P2 P2
P1
PRODUCT
PRODUCT
3310
01782
II
3310
01782 H
TI
BRG
REAR
H,P2
HH,P1
3310
01782 G
TI
BRG
FRONT
H,P2
HH,P1
3310
01782 G
TE
3310
01782
XA
3310
01782 H
TE
V V
3310
01782
HS 3310
01711
XA
+
J/SP
FAULT
AFD
GEAR
REDUCER
3310
01792
XA
3310
01792
HS
J/SP
3310
01792
II
FAULT
3310
01731
XA
+
3310
01741
VE
3310
01741
VT
3310
01743
TE
3310
01742
LE
3310
01742
LSL
3310
01742
LA
3310
01741
VI
ES
V V V
V
V
V
H, P2
HH, P1 3310
01743
TI
L, P2
H, P2
HH, P1
T4
NOTES:
1. THE BALL MILL SCREEN FEEDER AND BALL MILL SCREEN FEED CONVEYOR DUST SUPPRESSION
SYSTEM WILL BE FURTHER DEFINED IN REVISIONS. SPRAY WATER WILL BE SUPPLIED BY THE
PROCESS WATER SYSTEM.
T1
T1
3310
01801
FIC
3310
01823
VAL
3310
01803
VAL
3310
01821
FIC
3310
01891
HS
3310
01803
VE
M
3310
01822
FIC
3310
01881
HS
3310
01821
FFFIC
3310
01824
LSH
3310
01891
II
3310
01804
LSH
3310
01804
LAH
3310
01823
VT
M
3310
01801
FIT
3310
01802
FIC
3310
01824
LAH
3310
01803
VT
3310
01823
VSL
3310
01801
FFFIC
3310
01822
FIT
3310
01802
FIT
3310
01881
II
3310
01823
VE
M
3310
01891
XA
3310
01803
VSL
M
3310
01881
XA
3310
01821
FIT
BALL MILL SCREEN U/S
PRIMARY CYCLONE FEED
SUMP NO. 6, C2-3310-BX-601
1674 3300-25J-046
BALL MILL SCREEN O/S
BALL MILL SCREEN OVERSIZE
CONVEYOR NO. 2,
1463 3300-25J-021
PROCESS WATER
1669
3900-25J-014
TERTIARY CRUSHER
SCREEN FEED CONVEYOR
NO. 11, C2-3310-CV-070
1579 3300-25J-016
PROCESS WATER
1671
3900-25J-014
BALL MILL SCREEN O/S
BALL MILL SCREEN OVERSIZE
CONVEYOR NO. 2,
1462 3300-25J-021
PROCESS WATER
1670
3900-25J-014
C2-3310-CV-070
FEED TONNAGE,
3310-WI-01630
1580 3300-25J-016
TERTIARY CRUSHER
SCREEN FEED CONVEYOR
NO. 12, C2-3310-CV-071
1675 3300-25J-017
PROCESS WATER
1672
3900-25J-014
BALL MILL SCREEN U/S
PRIMARY CYCLONE FEED
SUMP NO. 6, C2-3310-BX-601
1673 3300-25J-046
C2-3310-CV-071
FEED TONNAGE,
3310-WI-01730
1676 3300-25J-017
FAULT
P1
P2
P1
J/SP
FAULT
J/SP
P2
3310-WR-1468-C1A-20"-N
3310-WR-1463-C1A-2"-N
3310-WR-1478-C1A-2"-N
C2-3310-SC-601
AG
KM
LT
ISSUED FOR CLIENT REVIEW
23-Dec-11
B
RP
ISSUED FOR COMBINED REVIEW
29-Jun-11
A
12/23/2011
K. MUNDY
A. GUNSON
W. BIE
L. TAMELIN
12/22/2011
4:07:25
PM
WBS: 3310
B
PIPING AND INSTRUMENTATION DIAGRAM
BALL MILL FEED
3300-25J-018
SCREENS 601 AND 602
10"
3310-WR-1473-C1A-2"-N
24"x10"
3310
01822
FE
+
3310-WR-1476-C1A-2"-N
SIZE:
C2-3310-ST-606
BALL MILL SCREEN OVERSIZE CHUTE
SIZE:
C2-3310-ST-607
BALL MILL FEED SCREEN UNDERSIZE CHUTE
4"
3310-WR-1467-C1A-2"-N
3310-WR-1461-C1A-2"-N
3310-WR-1465-C1A-2"-N
C2-3310-BX-607
3310-WR-1466-C1A-2"-N
3310-WR-1135-C1A-24"-N
10"
3310-WR-1137-C1A-8"-N
3310-WR-1477-C1A-2"-N
3310
01822
FV
+
24"x20"
3310-WR-1138-C1A-24"-N
3310-WR-1479-C1A-2"-N
SIZE:
C2-3310-ST-608
BALL MILL FEED SCREEN UNDERSIZE CHUTE
SIZE:
C2-3310-BX-607
BALL MILL SCREEN FEED BOX
3310
01821
FE
+
SIZE:
C2-3310-ST-605
BALL MILL SCREEN OVERSIZE CHUTE
4"
10"
3310-WR-1475-C1A-2"-N
24"x10"
C2-3310-SC-602
3310-WR-1464-C1A-2"-N
24"x20"
24"x10"
3310
01802
FV
+
3310-WR-1136-C1A-8"-N
C2-3310-BX-608
C2-3310-ST-605
3310
01802
FE
+
3310-WR-1459-C1A-8"-N
C2-3310-ST-608
3310
01821
FV
+
24"x10"
SIZE:
C2-3310-BX-608
BALL MILL SCREEN FEED BOX
3310
01801
FE
+
3310-WR-1471-C1A-8"-N
3310-WR-1474-C1A-2"-N
4"
C2-3310-ST-607
3310-WR-1456-C1A-20"-N
SIZE: 3.6 m X 8.5 m
MOTOR:
C2-3310-SC-602
BALL MILL FEED SCREEN
SIZE: 3.6 m X 8.5 m
MOTOR:
C2-3310-SC-601
BALL MILL FEED SCREEN
10"
C2-3310-ST-606
3310
01801
FV
+
3310-WR-1462-C1A-2"-N
ES
ES
ES
ES
ES
D
4
F
B
A
3
2
1 5 6 8
E
7
C
REV.
APPROVED
CHK.
DES.
REV. DATE REVISION DESCRIPTION
CLIENT
LEAD ENGINEER
SCALE DRAWING NUMBER
CHECK DESIGN CHECK DRAWING
DESIGNED BY DRAWN BY
APPROVAL DATE
APPROVAL DATE
APPROVED
CHK.
DES.
REV. DATE REVISION DESCRIPTION REFERENCE DRAWING No.
1:100
0
1:200
5m
10m
0
5m
10m
15m
20m
1:500
10m
0
20m
30m
40m
50m
1:1000
0
100m
50m
1:20
0
0.5m
1m
1.5m
2m
0
1:25
0.5m
1m
1.5m
1:33
1/3
2.5m
2m
0
1m
2m
3m
0
1:50
1m
2m
3m
4m
5m
CAD FILE NAME: P:0CAD000SPEM**
MODEL UPDATED:
DWG. FILE UPDATED:
MANUAL CHANGES MADE: YES NO YES NO YES NO
PROJECT MANAGER
ENGINEERING MANAGER
AREA PROJECTENGINEER
REFERENCE DRAWINGS
SAFETY SHARE:
APPROVAL DATE
CONTRACT
NO.
SAFETY SHARE :
BA6CVA1.IGR
NOTICE: THIS DRAWING HAS NOT BEEN PUBLISHED AND IS THE SOLE
PROPERTY OF FLUOR AND IS LENT TO THE BORROWER FOR THEIR
CONFIDENTIAL USE ONLY, AND IN CONSIDERATION OF THE LOAN OF THIS
DRAWING, THE BORROWER PROMISES AND AGREES TO RETURN IT UPON
REQUEST AND AGREES THAT IT WILL NOT BE REPRODUCED, COPIED LENT
OR OTHERWISE DISPOSED OF DIRECTLY OR INDIRECTLY, NOR USED FOR
ANY OTHER PURPOSE OTHER THAN WHICH IT IS FURNISHED.
NONE
Apr 2011
240K-C2-
FC
FC
FC
FC
PRODUCT
PRODUCT
3310-WR-1460-C1A-8"-N
C2-3310-CV-029
C2-3310-CV-029
ES
3310-WR-1136-C1A-8"-N
V V V
V V V
3310-WR-1137-C1A-8"-N
4"
4"
4"
4"
D
4
F
B
A
3
2
1 5 6 8
E
7
C
REV.
APPROVED
CHK.
DES.
REV. DATE REVISION DESCRIPTION
CLIENT
LEAD ENGINEER
SCALE DRAWING NUMBER
CHECK DESIGN CHECK DRAWING
DESIGNED BY DRAWN BY
APPROVAL DATE
APPROVAL DATE
APPROVED
CHK.
DES.
REV. DATE REVISION DESCRIPTION REFERENCE DRAWING No.
1:100
0
1:200
5m
10m
0
5m
10m
15m
20m
1:500
10m
0
20m
30m
40m
50m
1:1000
0
100m
50m
1:20
0
0.5m
1m
1.5m
2m
0
1:25
0.5m
1m
1.5m
1:33
1/3
2.5m
2m
0
1m
2m
3m
0
1:50
1m
2m
3m
4m
5m
CAD FILE NAME: P:0CAD000SPEM**
MODEL UPDATED:
DWG. FILE UPDATED:
MANUAL CHANGES MADE: YES NO YES NO YES NO
PROJECT MANAGER
ENGINEERING MANAGER
AREA PROJECTENGINEER
REFERENCE DRAWINGS
SAFETY SHARE:
APPROVAL DATE
CONTRACT
NO.
SAFETY SHARE :
BA6CVA1.IGR
NOTICE: THIS DRAWING HAS NOT BEEN PUBLISHED AND IS THE SOLE
PROPERTY OF FLUOR AND IS LENT TO THE BORROWER FOR THEIR
CONFIDENTIAL USE ONLY, AND IN CONSIDERATION OF THE LOAN OF THIS
DRAWING, THE BORROWER PROMISES AND AGREES TO RETURN IT UPON
REQUEST AND AGREES THAT IT WILL NOT BE REPRODUCED, COPIED LENT
OR OTHERWISE DISPOSED OF DIRECTLY OR INDIRECTLY, NOR USED FOR
ANY OTHER PURPOSE OTHER THAN WHICH IT IS FURNISHED.
NONE
Apr 2011
240K-C2-
C2-3310-CV-019
3310
02010
SE
3310
02003 A
SE
3310
02007 A
TE
3310
02006 A
TE
3310
02003 A
ST
3310
02004
ZSH
3310
02005
ZSH
3310
02008 A
XS
3310
02007 A
TI
3310
02006 A
TI
3310
02008
XA
3310
02004
ZSHH
3310
02005
ZSHH
3310
02003 A
SI
3310
02005
ZAH
3310
02004
ZAH
3310
02010
WE
3310
02010
WIT
3310
02010
WI
C2-3310-SL-101
RHS
H, P2
HH, P1
LHS
H, P2
HH, P1
RHS
LHS
P1
TEAR
L, P2
H, P2
3310
02002
HSS
3310
02001
HSS
3310
02001
HSA
P1
A-H
C2-3310-ST-086
3310
02015 B
LSH
3310
02043
TE
3310
02043
TI
3310
02015 B
LAH
H, P2
HH, P1
P1
3310
02081
II
3310
02081
XA
3310
02081
HS
3310
02011
XA
+
A - H
J/SP
FVNR CONV
SAFETY
INTERLOCKS
A - H
LHS
A - H
GEAR
REDUCER
T4
RHS
LHS
A - D
A - D
3310
02081 H
TE
3310
02081 G
TE
3310
02081 H
TI
3310
02081 G
TI
BRG
FRONT
H, P2
HH, P1
BRG
REAR
H, P2
HH, P1
RHS
3310
02002
HSA
A-H
P1
RHS
LHS
BALL MILL SCREEN O/S
BALL MILL FEED SCREEN,
C2-3310-SC-101
1304 3300-25J-003
BALL MILL SCREEN O/S
BALL MILL FEED SCREEN,
C2-3310-SC-201
1305 3300-25J-006
BALL MILL SCREEN O/S
BALL MILL FEED SCREEN,
C2-3310-SC-301
1306 3300-25J-009
BALL MILL SCREENS O/S
TERTIARY CRUSHER SURGE
BIN FEED CONVEYOR NO. 1
1307 3200-25J-025
BALL MILL SCREEN O/S
BALL MILL FEED SCREEN,
C2-3310-SC-102
1308 3300-25J-003
BALL MILL SCREEN O/S
BALL MILL FEED SCREEN,
C2-3310-SC-202
1375 3300-25J-006
BALL MILL SCREEN O/S
BALL MILL FEED SCREEN,
C2-3310-SC-302
1376 3300-25J-009
3310
02008 B
XS
LHS
RHS
3310
02015 A
LSH
3310
02015 A
LAH P1
3310
02015 B
LE
3310
02015 A
LE
3310
02003 B
SE
3310
02003 B
ST
3310
02003 B
SI
3310
02003
SDI H, P1
SIZE: 1829 mm
C2-3310-SL-101
CV-019 2-IDLER BELT SCALE
SIZE:
C2-3310-ST-086
CONVEYOR CV-019 HEAD/TRANSFER CHUTE
ES
ES
AG
KM
LT
ISSUED FOR CLIENT REVIEW
23-Dec-11
B
RP
ISSUED FOR COMBINED REVIEW
29-Jun-11
A
12/23/2011
K. MUNDY
A. GUNSON
W. BIE
L. TAMELIN
12/23/2011
9:02:24
AM
WBS: 3310
B
PIPING AND INSTRUMENTATION DIAGRAM
BALL MILL FEED
3300-25J-020
BALL MILL SCREEN O/S CONVEYOR NO. 1
A,B
FAULT
SIZE: 1829 mm X 229 m L
MOTOR: 597.00 kW
C2-3310-CV-019
BALL MILL SCREEN OVERSIZE CONVEYOR NO. 1
V V
V
V
C2-3310-MA-015
V
ES V
V
3310
02085
HS
J/SP
3310
02085
XA
3310
02085
II
C2-3310-ST-319
C2-3310-BN-319
FAULT
T4
3310
02021
SE
3310
02021
SSL
3310
02021
SAL P1
3310
02022
ZSH
3310
02022
ZAH
P2
3310
02022
ZAHH
P1
3310
02022
ZSHH
3310
02013 A
XE
3310
02013 B
XE
3310
02013 A
XY
3310
02013 B
XY
3310
02013
XIH
V
V
V
V
V
V V A - D
A - D
3310
02005
ZAHH
3310
02004
ZAHH
P2
P2
P1
A - D
LHS
P1
A - D
RHS
SIZE:
C2-3310-MA-015
CV-019 SELF CLEANING MAGNET
SIZE:
C2-3310-ST-319
CV-019 TRAMP METAL CHUTE
SIZE:
C2-3310-BN-319
CV-019 TRAMP METAL BIN
TEAR
ES
V
V
A-B
A-B
A-B A-B
3310
02041
VE
3310
02041
VT
3310
02042
LE
3310
02042
LSL
3310
02041
VI
3310
02042
LA
ES H, P2
HH, P1
L, P2
V V
V
V
SIZE:
C2-3310-ZE-016
CV-19 SENSOR GUARD BELT RIP DETECTOR
C2-3310-ZE-016
A
D
E C
B
A-E A-E
A-E
A-E
SENSOR GUARD
D
4
F
B
A
3
2
1 5 6 8
E
7
C
REV.
APPROVED
CHK.
DES.
REV. DATE REVISION DESCRIPTION
CLIENT
LEAD ENGINEER
SCALE DRAWING NUMBER
CHECK DESIGN CHECK DRAWING
DESIGNED BY DRAWN BY
APPROVAL DATE
APPROVAL DATE
APPROVED
CHK.
DES.
REV. DATE REVISION DESCRIPTION REFERENCE DRAWING No.
1:100
0
1:200
5m
10m
0
5m
10m
15m
20m
1:500
10m
0
20m
30m
40m
50m
1:1000
0
100m
50m
1:20
0
0.5m
1m
1.5m
2m
0
1:25
0.5m
1m
1.5m
1:33
1/3
2.5m
2m
0
1m
2m
3m
0
1:50
1m
2m
3m
4m
5m
CAD FILE NAME: P:0CAD000SPEM**
MODEL UPDATED:
DWG. FILE UPDATED:
MANUAL CHANGES MADE: YES NO YES NO YES NO
PROJECT MANAGER
ENGINEERING MANAGER
AREA PROJECTENGINEER
REFERENCE DRAWINGS
SAFETY SHARE:
APPROVAL DATE
CONTRACT
NO.
SAFETY SHARE :
BA6CVA1.IGR
NOTICE: THIS DRAWING HAS NOT BEEN PUBLISHED AND IS THE SOLE
PROPERTY OF FLUOR AND IS LENT TO THE BORROWER FOR THEIR
CONFIDENTIAL USE ONLY, AND IN CONSIDERATION OF THE LOAN OF THIS
DRAWING, THE BORROWER PROMISES AND AGREES TO RETURN IT UPON
REQUEST AND AGREES THAT IT WILL NOT BE REPRODUCED, COPIED LENT
OR OTHERWISE DISPOSED OF DIRECTLY OR INDIRECTLY, NOR USED FOR
ANY OTHER PURPOSE OTHER THAN WHICH IT IS FURNISHED.
NONE
Apr 2011
240K-C2-
BALL MILL SCREEN O/S
TERTIARY CRUSHER SURGE
BIN FEED CONVEYOR NO. 2,
1460 3200-25J-026
BALL MILLL SCREEN O/S
BALL MILL FEED SCREEN,
C2-3310-SC-601
1462 3300-25J-018
BALL MILLL SCREEN O/S
BALL MILL FEED SCREEN,
C2-3310-SC-602
1463 3300-25J-018
BALL MILLL SCREEN O/S
BALL MILL FEED SCREEN,
C2-3310-SC-501
1464 3300-25J-015
BALL MILLL SCREEN O/S
BALL MILL FEED SCREEN,
C2-3310- SC-502
1465 3300-25J-015
BALL MILLL SCREEN O/S
BALL MILL FEED SCREEN,
C2-3310-SC-401
1466 3300-25J-012
BALL MILLL SCREEN O/S
BALL MILL FEED SCREEN,
C2-3310-SC-402
1467 3300-25J-012
AG
KM
LT
ISSUED FOR CLIENT REVIEW
23-Dec-11
B
RP
ISSUED FOR COMBINED REVIEW
29-Jun-11
A
12/23/2011
K. MUNDY
A. GUNSON
W. BIE
L. TAMELIN
12/23/2011
9:01:17
AM
WBS: 3310
B
PIPING AND INSTRUMENTATION DIAGRAM
BALL MILL FEED
3300-25J-021
BALL MILL SCREEN O/S CONVEYOR NO. 2
T4
P1
3310
02115 A
LAH
3310
02122
ZAHH
3310
02115 A
LSH
P2
3310
02122
ZAH
3310
02122
ZSH
RHS
P1
LHS
3310
02121
SAL
3310
02121
SSL
3310
02121
SE
T4
FAULT
3310
02104
ZAH
3310
02105
ZAH
A - H
3310
02103 A
SI
LHS
3310
02105
ZSHH
A - H
3310
02104
ZSHH
3310
02108
XA
FVNR CONV
SAFETY
INTERLOCKS
3310
02108 B
XS
C2-3310-BN-329
3310
02106 A
TI
C2-3310-ST-329
3310
02107 A
TI
3310
02185
II
3310
02108 A
XS
J/SP
3310
02185
XA
3310
02105
ZSH
A - H
J/SP
3310
02104
ZSH
3310
02185
HS
3310
02103 A
ST
3310
02106 A
TE
3310
02111
XA
+
3310
02107 A
TE
3310
02181
HS
3310
02103 A
SE
3310
02181
XA
3310
02110
SE
3310
02181
II
C2-3310-CV-029
P1
V
V
ES
V
C2-3310-MA-016
H, P2
HH, P1
LHS
V
P1
RHS A-H
3310
02115 B
LAH
3310
02102
HSA
SIZE:
C2-3310-BN-329
CV-029 TRAMP METAL BIN
RHS
SIZE:
C2-3310-ST-329
CV-029 TRAMP METAL CHUTE
SIZE:
C2-3310-MA-016
CV-029 SELF CLEANING MAGNET
3310
02143
TI
P1
A - D
RHS
3310
02143
TE
V
P1
A - D
LHS
3310
02115 B
LSH
V
P2
V
P2
3310
02104
ZAHH
C2-3310-ST-096
3310
02105
ZAHH
A-H
A - D
P1
A - D
SIZE: 1829 mm X 229 m L
MOTOR: 597.00 kW
C2-3310-CV-029
BALL MILL SCREEN OVERSIZE CONVEYOR NO. 2
V
BRG
REAR
H, P2
HH, P1
V
BRG
FRONT
H, P2
HH, P1
FAULT
3310
02101
HSA
V
A,B
V V
3310
02101
HSS
ES
V
3310
02102
HSS
3310
02181 G
TI
V
L, P2
H, P2
3310
02181 H
TI
TEAR
3310
02181 G
TE
ES
P1
3310
02181 H
TE
LHS
SIZE:
C2-3310-ST-096
CONVEYOR CV-029 HEAD/TRANSFER CHUTE
H, P2
HH, P1
RHS
SIZE: 1829 mm
C2-3310-SL-201
CV-029 2-IDLER BELT SCALE
H, P2
HH, P1
LHS
A - D
GEAR
REDUCER
RHS
A - D
C2-3310-SL-201
LHS
RHS
H, P1
3310
02113
XIH
3310
02113 B
XY
3310
02113 A
XY
3310
02110
WI
3310
02103
SDI
3310
02110
WIT
3310
02103 B
SI
3310
02110
WE
3310
02103 B
ST
3310
02103 B
SE
3310
02113 B
XE
3310
02113 A
XE
3310
02115 A
LE
3310
02122
ZSHH
3310
02115 B
LE
P1
C2-3240-CV--041
TEAR
ES
V
V
A-B
A-B
A-B A-B
SIZE:
C2-3310-ZE-017
CV-029 SENSOR GUARD BELT RIP DETECTOR
3310
02141
VE
3310
02141
VT
3310
02142
LE
3310
02142
LSL
3310
02141
VI
3310
02142
LA
V V
V
V
H, P2
HH, P1
L, P2
ES
D
E C
A B
A-E A-E
A-E
A-E
C2-3310-ZE-017 SENSOR GUARD
3310
02203
FIT
3310
02203
FI
L, P2
LL, P1
3310
02202
LIC
3310
02206
PI
3310
02207
PI
3310
02203
PIT
3310
02203
PI
L, P1
3310
02202
LE
3310
02202
LT
3310
02202
LI
3310
02209
LIT
3310
02209
LE
3310
02282
XA
3310
02282
II
3310
02282
HS
J/SP
3310
02209
LI
H, P2
HH, P1
L,P2
M
NOTE 2
NOTE 7
MIN
NOTE 3
C2-3310-PP-103
36"
C2-3310-BX-101
D
4
F
B
A
3
2
1 5 6 8
E
7
C
REV.
APPROVED
CHK.
DES.
REV. DATE REVISION DESCRIPTION
CLIENT
LEAD ENGINEER
SCALE DRAWING NUMBER
CHECK DESIGN CHECK DRAWING
DESIGNED BY DRAWN BY
APPROVAL DATE
APPROVAL DATE
APPROVED
CHK.
DES.
REV. DATE REVISION DESCRIPTION REFERENCE DRAWING No.
1:100
0
1:200
5m
10m
0
5m
10m
15m
20m
1:500
10m
0
20m
30m
40m
50m
1:1000
0
100m
50m
1:20
0
0.5m
1m
1.5m
2m
0
1:25
0.5m
1m
1.5m
1:33
1/3
2.5m
2m
0
1m
2m
3m
0
1:50
1m
2m
3m
4m
5m
CAD FILE NAME: P:0CAD000SPEM**
MODEL UPDATED:
DWG. FILE UPDATED:
MANUAL CHANGES MADE: YES NO YES NO YES NO
PROJECT MANAGER
ENGINEERING MANAGER
AREA PROJECTENGINEER
REFERENCE DRAWINGS
SAFETY SHARE:
APPROVAL DATE
CONTRACT
NO.
SAFETY SHARE :
BA6CVA1.IGR
NOTICE: THIS DRAWING HAS NOT BEEN PUBLISHED AND IS THE SOLE
PROPERTY OF FLUOR AND IS LENT TO THE BORROWER FOR THEIR
CONFIDENTIAL USE ONLY, AND IN CONSIDERATION OF THE LOAN OF THIS
DRAWING, THE BORROWER PROMISES AND AGREES TO RETURN IT UPON
REQUEST AND AGREES THAT IT WILL NOT BE REPRODUCED, COPIED LENT
OR OTHERWISE DISPOSED OF DIRECTLY OR INDIRECTLY, NOR USED FOR
ANY OTHER PURPOSE OTHER THAN WHICH IT IS FURNISHED.
NONE
Apr 2011
240K-C2-
MIN
MIN
NOTE 3
3310
02201
FIT
3310
02201
FI
3310
02201
DI
3310
02201
WY
3310
02201
WI
MASS FLOW
3310
02201
DIT
3310
02201
DE
3310
02201
DX
3310
02281 G
TE
3310
02281 H
TE
3310
02281 G
TI
3310
02281 H
TI
3310
02281
HS
3310
02281
II
3310
02281
XA
C2-3310-PP-101
NOTES:
1. DRAIN SEQUENCE WILL OPEN THE DRAIN VALVE AFTER A SET PERIOD OF INACTIVITY.
2. WILL OPERATE IN ACCORDANCE WITH THE DRAIN PROCEDURE AS DESCRIBED IN
THE CONTROL PHILOSOPHY.
3. DIRECT DRAIN LINES TOWARDS AREA SPILLAGE PUMP.
4. IN ADDITION TO THE STANDARD MAINTENANCE DATA, THIS WILL ALSO CAPTURE
THE PUMP LIFE VS THE MASS FLOW TROUGH THE PUMP.
5. DELETED
6. CYCLONE FEED PUMP FLOW SWITCHES, PRESSURE SWITCHES AND ISOLATION VALVES
TO BE LOCATED ON THE OPERATING LEVEL.
7. SPACE PROVIDED FOR MANUAL SAMPLING.
T3
M
M
T8
3310
02208
XV
+
3310
02204
XV
+
3310
02205
XV
+
1-1/2"
1-1/2"
3310
02203
FE
+
2"x1-1/4"
54"x36"
3"x2"
3"x2"
TO FLOOR
TO FLOOR
AFD
3310
02201
FE
+
FI
FI
BRG
FRONT
H, P2
HH,P1
BRG
REAR
H, P2
HH,P1
H, P2
L, P2
3310
02208 B
HS
OP/CL
L/R
3310
02208
ZS
OP/CL
3310
02208
XA
NOTE 2
(LAUNDER)
BALL MILL SCREEN U/S
BALL MILL FEED SCREEN,
C2-3310-SC-102
1309 3300-25J-003
BALL MILL SCREEN U/S
BALL MILL FEED SCREEN,
C2-3310-SC-101
1310 3300-25J-003
BALL MILL NO.1 DISCHARGE
BALL MILL NO.1 DISCHARGE
LAUNDER, C2-3320-LA-101
1313 3300-25J-023
PROCESS WATER
1314 3900-25J-014
PROCESS WATER
1315 3900-25J-014
PROCESS WATER
1316 3900-25J-014
GRIND. AREA SUMP CONT.
TAILING COLLECTION
LAUNDER
1317
3700-25J-001
PRIMARY CYCLONE FEED
PRIMARY CYCLONE,
C2-3330-CS-101
1327 3300-25J-023
FRESH WATER
1329
3310
AP
3310
AP
ES
3310-DR- -C1B-4"-N
3310-WR-1480-C1A-8"-N
ES
ES
3310-SL-1020-R1B-48"-N
3310-DR-1006-C1B-6"-N
3310-WR-1112-C1A-8"-N
SIZE:
MATERIAL:
CAPACITY:290.0 m^3
TRIM:R1B
C2-3310-BX-101
BALL MILL CYCLONE FEED SUMP
3310-WF-1350-C1A-1-1/2"-N
3310-WG-1020-C1A-2"-N
3310-DR-1005-C1A-8"-N
ES
3310-SL-1016-C1B-20"-N
3310-SL-1015-C1B-2"-N
3310-WR-1102-C1A-4"-N
3310-WR-1103-C1A-8"-N
SIZE:
MATERIAL:
MOTOR:
C2-3310-PP-103
GRINDING AREA FLOOR SUBMERSIBLE SUMP PUMP
3310-SL-1019-R1B-54"-N
SIZE:
MATERIAL:
MOTOR:
C2-3310-PP-101
PRIMARY CYCLONE FEED PUMP NO. 1 (AFD)
AG
KM
LT
ISSUED FOR CLIENT REVIEW
23-Dec-11
B
RP
ISSUED FOR COMBINED REVIEW
29-Jun-11
A
12/23/2011
K. MUNDY
A. GUNSON
W. BIE
L. TAMELIN
12/22/2011
4:05:06
PM
WBS: 3310
B
PIPING AND INSTRUMENTATION DIAGRAM
BALL MILL FEED
3300-25J-022
PRIMARY CYCLONE FEED SUMP NO. 1
J/SP
FAULT
3310
02204
ZS
3310
02205
ZS
3310
02204
XA
3310
02205
XA
OP/CL
OP/CL
MISMATCH
FAULT
MISMATCH
MISMATCH
GRIND. AREA SUMP CONT.
BALL MILL NO.2 CYCLONE
FEED SUMP, C2-3310-BX-201
3290
3300-25J-026
FLOOR SPILL
BALL FEEDER AREA
SUBMERSIBLE SUMP PUMP,
3264 3300-25J-052
FRESH WATER
GRINDING AREA HEAT
EXCHANGERS,
3295 3300-25J-054
C2-3240-PP-023/024
3310-WF-1114-C1A-4"-N
FRESH WATER
1350 3300-25J-025
3310-SL-1802-C1B-4"-N
3310-WF-1484-C1A-8"-N
V V
FI
C2-3320-PP-043
EFFLUENT
ES
3310-WF-1504-C1A-1"-N
CRUSHING PLANT
COARSE SCREENING
EFFLUENT PUMPS,
3523 3300-25J-036
LIME AREA SUMP CONT.
LIME PLANT SUMP PUMP,
C2-3920-PP-095
2368 3900-25J-012
GLAND SEAL WATER
GRINDING AREA SUMP
CONTENTS
2944
3900-25J-023
C2-3300-HX-770/771/772
TAILING COLLECTION
LAUNDER, C2-3710-LA-001
3927 3700-25J-001
3310-SL- -H0K-48"-N
3310-DR-1016-C1A-8"-N
3310-DR-
-C1A-8"-N
T4
3320
32301
XA
3320
32301
ZS
A-R
3320
02301
ZS
3320
02304
FIT
3320
02381
II
3320
02303
FIT
3320
02305
PIC
3320
02381
HS
3320
02302
FIC
3320
02304
FIC
3320
02302
FIT
RPS
3320
02305
PIT
M
3320
02381
XA
M
3320
02303
FIC
M
TEST REAGENT
INJECTOR, C2-3910-ZM-691
1336 3900-25J-004
PROCESS WATER
1339
3900-25J-014
FROTHER GLYCOL
INJECTOR, C2-3910-ZM-671
1342
3900-25J-005
SAMPLER SAFETY SCREEN
FLOTATION SAFETY SCREEN,
C2-3330-SC-105
1337 3300-25J-025
PROCESS WATER
1340
3900-25J-014
SECONDARY COLLECTOR
INJECTOR, C2-3910-ZM-616
1331 3900-25J-002
INJECTOR C2-3910-ZM-671
DENSITY CONTROL,
3330-DIC-02502
1343
3300-25J-025
MILK OF LIME
LIME DISTRIBUTOR PUMPS,
C2-3920-PP-093/094
1335 3900-25J-012
3330-AIC-02501
GRINDING BALLS
BALL MILL TRANSFER
CONVEYOR, C2-3320-CV-034
1382 3300-25J-053
CYCLONE O/F
BALL MILL NO.1 CYCLONE O/F
SAMPLER C2-3330-SA-101
1341 3300-25J-025
MO COLLECTOR
INJECTOR, C2-3910-ZM-580
1333 3900-25J-003
BALL MILL DISCHARGE
PRIMARY CYCLONE FEED
SUMP, C2-3310-BX-101
1313 3300-25J-022
PRIMARY CYCLONE FEED
PRIMARY CYCLONE FEED
PUMP C2-3310-PP-101
1327 3300-25J-022
PROCESS WATER
1338
3900-25J-014
PRIMARY COLLECTOR
INJECTOR, C2-3910-ZM-590
1332 3900-25J-001
C2-3330-SA-101
IN-LINE ANALYZER
PH-CONTROL,
1334 3300-25J-025
MISMATCH
OP/CL
VENDOR DRAWING NO:
C2-3300-25J-
A-R
A-R (QTY 16)
NOTE 3
OP/CL
NOTE 2
FAULT
LAUNDER
NOTE 2
NOTE 1
H, P2
L, P2
NOTES:
1. MILL CAPACITY IS BASED ON NEW FEED.
2. SPACE PROVIDED FOR MANUAL SAMPLING
3. HORN FOR START UP.
EMERGENCY BALLS
FROM BALL BUCKET
TOTE BIN
NOTE 2
3300-SL-1034-R1A-40"-N
3320
02303
FV
+
SIZE:
C2-3320-SC-107
BAL MILL NO.1 DISCH. TRAMP GRIZZLY
3320
02381
XA
+
C2-3330-CS-101
ES
ES
FC
FC
FC
ES
FL
FI
V
V
1-1/2"x1/2"
C2-3320-ML-101
3320
02302
FV
+
16"x14"
14"
3320
02301
AV
+
3320
02303
FE
+
6"
16"x10"
16"x10"
C2-3330-ST-130
3320
32301
XV
+
10"
C2-3320-LA-101
C2-3320-ST-190
SAMPLE POINT
C2-3320-ST-109
C2-3320-ST-120
C2-3330-LA-130
3320
02302
FE
+
C2-3320-SC-107
3320
02304
FE
+
16"x14"
C2-3330-LA-107
3320
02304
FV
+
3320-WR-1114-C1A-16"-N
3320-WR-1114-C1A-16"-N
3320-WR-1481-C1A-2"-N
3320-RC-1014-C1D-1"-N
3320-WR-1482-C1A-1-1/2"-N
3330-SL-1020-R1A-48"-N
SIZE:
C2-3330-ST-130
CYCLONE U/F LAUNDER DISCHARGE BOX
C2-3320-ST-119
SIZE:
C2-3320-ST-119
BALL MILL FEED CHUTE SPARE
SIZE: 8.2 m D x 14.6 m EGL
MOTOR: 22000.00 kW
C2-3320-ML-101
BALL MILL NO. 1
3330-SL-1023-R1B-48"-N
3320-RL-1008-C1B-2"-N
SIZE:
C2-3320-ST-190
BALL MILL NO.1 TRAMP CHUTE
SIZE:
C2-3320-ST-109
BALL MILL NO.1 HOOD & CHUTE
SIZE:
C2-3330-LA-107
PRIMARY CYCLONE OVERFLOW LAUNDER
SIZE:
C2-3320-LA-101
BALL MILL NO.1 DISCH. LAUNDER
3320-RF-1012-C1D-1"-N
SIZE:
C2-3330-LA-130
CYCLONE U/F LAUNDER
3320-RL-1022-C1B-2"-N
3320-RC-1093-C1D-1"-N
3320-WR-1113-C1A-16"-N
SIZE:
C2-3320-ST-120
BALL MILL NO.1 FEED CHUTE
3320-WR-1110-C1A-16"-N
SIZE:16 x 840 mm
C2-3330-CS-101
PRIMARY CYCLONE CLUSTER
3320-RC-1049-C1D-1"-N
3330-SL-1022-R1B-48"-N
3330-SL-1021-R1A-6"-N
3320-RC-1132-C1D-1"-N
D
4
F
B
A
3
2
1 5 6 8
E
7
C
REV.
APPROVED
CHK.
DES.
REV. DATE REVISION DESCRIPTION
CLIENT
LEAD ENGINEER
SCALE DRAWING NUMBER
CHECK DESIGN CHECK DRAWING
DESIGNED BY DRAWN BY
APPROVAL DATE
APPROVAL DATE
APPROVED
CHK.
DES.
REV. DATE REVISION DESCRIPTION REFERENCE DRAWING No.
1:100
0
1:200
5m
10m
0
5m
10m
15m
20m
1:500
10m
0
20m
30m
40m
50m
1:1000
0
100m
50m
1:20
0
0.5m
1m
1.5m
2m
0
1:25
0.5m
1m
1.5m
1:33
1/3
2.5m
2m
0
1m
2m
3m
0
1:50
1m
2m
3m
4m
5m
CAD FILE NAME: P:0CAD000SPEM**
MODEL UPDATED:
DWG. FILE UPDATED:
MANUAL CHANGES MADE: YES NO YES NO YES NO
PROJECT MANAGER
ENGINEERING MANAGER
AREA PROJECTENGINEER
REFERENCE DRAWINGS
SAFETY SHARE:
APPROVAL DATE
CONTRACT
NO.
SAFETY SHARE :
BA6CVA1.IGR
NOTICE: THIS DRAWING HAS NOT BEEN PUBLISHED AND IS THE SOLE
PROPERTY OF FLUOR AND IS LENT TO THE BORROWER FOR THEIR
CONFIDENTIAL USE ONLY, AND IN CONSIDERATION OF THE LOAN OF THIS
DRAWING, THE BORROWER PROMISES AND AGREES TO RETURN IT UPON
REQUEST AND AGREES THAT IT WILL NOT BE REPRODUCED, COPIED LENT
OR OTHERWISE DISPOSED OF DIRECTLY OR INDIRECTLY, NOR USED FOR
ANY OTHER PURPOSE OTHER THAN WHICH IT IS FURNISHED.
NONE
Apr 2011
240K-C2-
AG
KM
LT
ISSUED FOR CLIENT REVIEW
23-Dec-11
B
RP
ISSUED FOR COMBINED REVIEW
29-Jun-11
A
12/23/2011
K. MUNDY
A. GUNSON
W. BIE
L. TAMELIN
12/23/2011
10:10:08
AM
WBS: 3320
B
PIPING AND INSTRUMENTATION DIAGRAM
BALL MILL CIRCUITS
3300-25J-023
BALL MILL NO. 1
3320
32302
PI
3320
02307
LIC
M
3320
02306
FE
+
3320
02306
FIT
3320
02306
FQI
3320
02307
LV
+
3320
02307
LY
FRESH WATER
DISTRIBUTION
4135
5100-25J-014
5100-WF- -C1A-24"-N
FRESH WATER
BALL MILL NO.6 DISC.
LAUNDER, C2-3320-LA-601
4128 3300-25J-047
FRESH WATER
BALL MILL NO.5 DISC.
LAUNDER, C2-3320-LA-501
4130 3300-25J-043
FRESH WATER
BALL MILL NO.4 DISC.
LAUNDER, C2-3320-LA-401
4126 3300-25J-037
FRESH WATER
BALL MILL NO.3 DISC
LAUNDER, C2-3320-LA-301
4125 3300-25J-033
FRESH WATER
BALL MILL NO.2 DISC.
LAUNDER, C2-3320-LA-201
4123 3300-25J-027
3320-WF- -C1A-10"-N
V
5100-WF- -C1A-10"-N
4188
3300-25J-047
4202
3300-25J-043
4208
3300-25J-037
4209
3300-25J-033
4215
3300-25J-027
LEVEL
PROCESS WATER TANK NO.1
& NO.2, C2-3930-TK-730/731
4250
3900-25J-013
3320-WF- -C1A-10"-N
3320-WF- -C1A-10"-N
3320-WF- -C1A-10"-N
3320-WF- -C1A-10"-N
P.O NO.:
VENDOR DWG NO.:
VENDOR:
H, P2
HH, P2
L, P2
H, P2
L, P2
H, P2
L, P2
H, P2
LEAK
CONTROL
P.O NO.:
VENDOR DWG NO.:
VENDOR:
P.O NO.:
VENDOR DWG NO.:
VENDOR:
P.O NO.:
VENDOR DWG NO.:
VENDOR:
P.O NO.:
VENDOR DWG NO.:
VENDOR:
P.O NO.:
VENDOR DWG NO.:
VENDOR:
P.O NO.:
VENDOR DWG NO.:
VENDOR:
ACCUMULATOR
PUMP
H, P2
H, P2
AIR GAP
SENSORS
A-H, J
LUBE TANK
OIL
3320
02403
TE
3320
02403
TI
3320
02405
FISL
3320
02405
FAL
3320
02404
TI
3320
02404
TE
3320
02401
TE
3320
02401
TI
3320
02402
TI
3320
02402
TE
3320
33001
PI
3320
33011
PI
3320
32803
XA 3320
33031
PI
3320
33021
PI
3320
33002
TI
3320
33012
TI
H, P2
HH, P2
3320
33003
SI
3320
33013
SI
3320
33023
SI
3320
33033
SI
3320
33022
TI
3320
33032
TI
3320
32804
LAL
3320
32804
LALL
3320
32805
TA
3320
32806
PDAH
3320
32807
ZL
3320
32817
ZL
3320
32816
PDAH
3320
32814
LAL
3320
32815
TA
3320
32814
LALL
3320
32921
SI
BEARING
SEGMENT
#3
3320
32931
SI
BEARING
SEGMENT
#4
3320
32911
SI
BEARING
SEGMENT
#2
3320
32901
SI
BEARING
SEGMENT
#1
3320
32902
PI
3320
32912
PI
3320
32922
PI
3320
32932
PI
3320
32605
TI
3320
32606
LI
3320
32607
PI 3320
32608
CI
3320
32609
TI
3320
32610
TI
3320
32903
TI
3320
32913
TI
3320
32923
TI
3320
32933
TI
3320
32904
TI
3320
32914
TI
3320
32924
TI
3320
32934
TI
3320
32602
LAH
3320
32603
FI
3320
32604
TI
3320
32414
MI
A, B
3320
32415
LAH
P2
3320
32005
PAL
3320
32008
LALL
CIRCULATING
OIL
3320
32009
TI
3320
32010
PAL
P2
H, P2 LUBE
TANK OIL
P2
3320
32006
PDI
CIRCULATING STAND-BY
PUMP CONTROL
H, P2
3320
32506
PAL
P2
3320
32520
PI
3320
32507
PI
3320
32517
PI
3320
32516
PAL
3320
32509
PAL
ACCUMULATOR
PUMP CONTROL
ACCUMULATOR
#2
3320
32523
TI
3320
32519
PAL
3320
32521
FAL
3320
32518
PAL
3320
32522
PDI
H, P2
3320
32508
PAL
LOW PRESSURE
STAND-BY
PUMP CONTROL
3320
32523
LA
3320
32007
FAL
3320
32015
PI
H, P2
3320
32016
PAL
3320
32017
PAL
3320
32018
PAL
L,P2
LL, P2
3320
32019
PAL
3320
32409
ZA
3320
32408
XA
3320
32407
LAH P2
3320
32406
TI
3320
32405
TI
3320
32404
TI
3320
32401
XA
3320
32402
XA
3320
32403
XA
3320
32411
XA
3320
32412
XA
3320
32413
XA
3320
32601
XA
3320
32611
XA
3320
32501
XA
3320
32511
XA
3320
32513
XA
3320
32504
XA
3320
32502
XA
3320
32512
XA
3320
32503
XA
3320
32514
XA
3320
32505
XA
3320
32515
XA
3320
32004
XA
3320
32014
XA
3320
32013
XA
3320
32003
XA
3320
32012
XA
3320
32002
XA
3320
32011
XA
3320
32001
XA
3320
32801
XA
3320
32811
XA
BEARING SEGMENT #3 & #4
STAND-BY PUMP CONTROL
ACCUMULATOR
#1
EXPANSION
TANK COOLING
WATER
PUMPS
CIRCULATING
WATER
P2
MILL BRAKE CONTROLS
BEARING SEGMENT #1 & #2
STAND-BY PUMP CONTROL
L, P2
H, P2
LL, P2
L, P2
H, P2
CIRCULATING
PUMP
P2 P2
L, P2
H, P2
P2
P2
P2 P2
LUBE OIL
FILTER
LOW PRESSURE
OIL
CIRCULATING
OIL
CIRCULATING
STAND-BY
PUMP CONTROL
OIL
TANK
P2
HH, P2
LUBE OIL
FILTER
P2
OIL TANK
BEARING SEGMENT #1 & #2
STAND-BY PUMP CONTROL
ACCUMULATOR
PUMP CONTROL
P2
P2
P2
ACCUMULATOR #1
ACCUMULATOR #2
BEARING SEGMENT #3 & #4
STAND-BY PUMP CONTROL
CIRCULATING
PUMP
L, P2
H, P2
BEARING
SEGMENT
#2
L, P2
H, P2
BEARING
SEGMENT
#1
L, P2
H, P2
BEARING
SEGMENT
#3
BEARING
SEGMENT
#4
L, P2
H, P2
BEARING
SEGMENT
#2
BEARING
SEGMENT
#1
BEARING
SEGMENT
#1
BEARING
SEGMENT
#2
BEARING
SEGMENT
#3
BEARING
SEGMENT
#4
BEARING
SEGMENT
#3
BEARING
SEGMENT
#4
H, P2
HH, P2
H, P2
HH, P2
COOLING
WATER
OUT
L, P2
LL, P2 L, P2 H, P2
HH, P2
COOLANT
TO HEAT
EXCHANGER
COOLANT
FROM HEAT
EXCHANGER
WATER LEAK
SENSOR RIGHT
L, P2
LL, P2
H, P2
HH, P2
COOLING
WATER
COOLING
WATER IN
STATOR
WINDING
A-F
SEALING
SYSTEM WEAR
A-B
COOLING
AIR INTAKE
A-B
COOLING AIR
DISCHARGE
A-B
WATER LEAK
SENSOR LEFT
H, P2
H, P2
H, P2 H, P2
L, P2
H, P2
L, P2
H, P2
L, P2
H, P2
L, P2
H, P2
L, P2
H, P2
L, P2
H, P2
L, P2
H, P2
L, P2
H, P2
L, P2
H, P2
THRUST
BEARING
SEGMENT
#4
BEARING
SEGMENT
#4
BEARING
SEGMENT
#4
THRUST
BEARING
SEGMENT
#3
THRUST
BEARING
SEGMENT
#2
THRUST
BEARING
SEGMENT
#1
BEARING
SEGMENT
#3
BEARING
SEGMENT
#2
BEARING
SEGMENT
#1
BEARING
SEGMENT
#3
BEARING
SEGMENT
#2
BEARING
SEGMENT
#1
MILL NO.1 FIXED BEARING LUBE UNIT
MILL NO.1 FLOATING BEARING LUBE UNIT
MILL NO.1 FIXED BEARING
MILL NO.1 FLOATING BEARING
MILL NO.1 MOTOR CONTROL
MILL NO.1 CYCLOCONVERTER CONTROL
OVERPRESSURE
FAN LEFT
OVERPRESSURE
FAN RIGHT
FAN #1
LEFT
FAN #1
RIGHT
FAN #2
LEFT
FAN #2
RIGHT
CYCLOCONVERTER
COOLING WATER
PUMP
CYCLOCONVERTER
COOLING WATER
PUMP
(STAND BY)
BEARING
SEGMENT #1 & #2
LUBE PUMP
BEARING
SEGMENT #1 & #2
LUBE PUMP
(STAND BY)
BEARING
SEGMENT #3 & #4
LUBE PUMP
BEARING
SEGMENT #3 & #4
LUBE PUMP
(STAND BY)
ACCUMULATOR
PUMP
(STAND-BY)
CIRCULATING
PUMP
CIRCULATING
PUMP
(STAND-BY)
BEARING
SEGMENT #1 & #2
LUBE PUMP
BEARING
SEGMENT #1 & #2
LUBE PUMP
(STAND BY)
BEARING
SEGMENT #3 & #4
LUBE PUMP
BEARING
SEGMENT #3 & #4
LUBE PUMP
(STAND BY)
ACCUMULATOR
PUMP
ACCUMULATOR
PUMP
(STAND-BY)
CIRCULATING
PUMP
CIRCULATING
PUMP
(STAND-BY)
THRUST
BEARING
LUBE PUMP
THRUST
BEARING
LUBE PUMP
(STAND-BY)
AG
KM
LT
ISSUED FOR CLIENT REVIEW
23-Dec-11
B
RP
ISSUED FOR COMBINED REVIEW
19-Jul-11
A
12/23/2011
K. MUNDY
A. GUNSON
W. BIE
L. TAMELIN
12/23/2011
10:10:56
AM
WBS: 3320
B
PIPING AND INSTRUMENTATION DIAGRAM
BALL MILL CIRCUITS
3300-25J-024
BALL MILL NO. 1 ANCILLARIES
3320-WF-1343-C1A-2"-N
3320-WF-1344-C1A-2"-N
3320-WF-1340-C1A-2"-N
3320-WF-1341-C1A-4"-N
3320-WF-1342-C1A-4"-N
3320-WF-1349-C1A-2"-N
V
V
V
V V
D
4
F
B
A
3
2
1 5 6 8
E
7
C
REV.
APPROVED
CHK.
DES.
REV. DATE REVISION DESCRIPTION
CLIENT
LEAD ENGINEER
SCALE DRAWING NUMBER
CHECK DESIGN CHECK DRAWING
DESIGNED BY DRAWN BY
APPROVAL DATE
APPROVAL DATE
APPROVED
CHK.
DES.
REV. DATE REVISION DESCRIPTION REFERENCE DRAWING No.
1:100
0
1:200
5m
10m
0
5m
10m
15m
20m
1:500
10m
0
20m
30m
40m
50m
1:1000
0
100m
50m
1:20
0
0.5m
1m
1.5m
2m
0
1:25
0.5m
1m
1.5m
1:33
1/3
2.5m
2m
0
1m
2m
3m
0
1:50
1m
2m
3m
4m
5m
CAD FILE NAME: P:0CAD000SPEM**
MODEL UPDATED:
DWG. FILE UPDATED:
MANUAL CHANGES MADE: YES NO YES NO YES NO
PROJECT MANAGER
ENGINEERING MANAGER
AREA PROJECTENGINEER
REFERENCE DRAWINGS
SAFETY SHARE:
APPROVAL DATE
CONTRACT
NO.
SAFETY SHARE :
BA6CVA1.IGR
NOTICE: THIS DRAWING HAS NOT BEEN PUBLISHED AND IS THE SOLE
PROPERTY OF FLUOR AND IS LENT TO THE BORROWER FOR THEIR
CONFIDENTIAL USE ONLY, AND IN CONSIDERATION OF THE LOAN OF THIS
DRAWING, THE BORROWER PROMISES AND AGREES TO RETURN IT UPON
REQUEST AND AGREES THAT IT WILL NOT BE REPRODUCED, COPIED LENT
OR OTHERWISE DISPOSED OF DIRECTLY OR INDIRECTLY, NOR USED FOR
ANY OTHER PURPOSE OTHER THAN WHICH IT IS FURNISHED.
NONE
Apr 2011
240K-C2-
3320
32020
XA
COMMON
ALARM
3320
33010
XA COMMON
ALARM
3320
32610
XA COMMON
ALARM
3320
32410
XA COMMON
ALARM
3320
32525
XA COMMON
ALARM
3320
32910
XA COMMON
ALARM
3320-WF-1346-C1A-4"-N
3320-WF-1347-C1A-4"-N
3320-WF-1345-C1A-2"-N
3320-WF-1348-C1A-2"-N
HH, P1
C2-3320-ML-101
CLOSED LOOP CWR
GRINDING AREA HEAT
EXCHANGERS,
3865 3300-25J-057
CLOSED LOOP CWR
GRINDING AREA HEAT
EXCHANGERS,
3866 3300-25J-057
CLOSED LOOP CWR
GRINDING AREA HEAT
EXCHANGERS,
3867 3300-25J-057
CLOSED LOOP CWR
GRINDING AREA HEAT
EXCHANGERS,
3868 3300-25J-057
CLOSED LOOP CWR
GRINDING AREA HEAT
EXCHANGERS,
3869 3300-25J-057
C2-3320-HX-770/771/772
C2-3320-HX-770/771/772
C2-3320-HX-770/771/772
C2-3320-HX-770/771/772
C2-3320-HX-770/771/772
CLOSED LOOP CWS
GRINDING COOLING SYSTEM
PUMPS, C2-3320-PP-765/766
3950 3300-25J-056
CLOSED LOOP CWS
GRINDING COOLING SYSTEM
PUMPS, C2-3320-PP-765/766
3951 3300-25J-056
CLOSED LOOP CWS
GRINDING COOLING SYSTEM
PUMPS, C2-3320-PP-765/766
3952 3300-25J-056
CLOSED LOOP CWS
GRINDING COOLING SYSTEM
PUMPS, C2-3320-PP-765/766
3953 3300-25J-056
CLOSED LOOP CWS
GRINDING COOLING SYSTEM
PUMPS, C2-3320-PP-765/766
3954 3300-25J-056
P.O NO.:
VENDOR DWG NO.:
VENDOR:
P.O NO.:
VENDOR DWG NO.:
VENDOR:
3330
02501
AIT
3330
02532
XL
3330
02511
AE
3330
02511
AIC
3330
02502
DX
3330
02512
DE
3330
02502
DIT
3330
02532
FALL
3330
02512
DIC
3330
02502
DE
3330
02501
AE
3330
02532
FSH
3330
02501
AIC
3330
02512
DX
3330
02502
DIC
3330
02511
AIT
3330
02512
DIT CYCLONE O/F SAMPLE
ROUGHER CELL NO.1 ROW
NO.2, C2-3410-CF-201
1352 3400-25J-001
CYCLONE O/F SAMPLE
ROUGHER CELL NO.1 ROW
NO.1, C2-3410-CF-101
1351 3400-25J-001
PRIMARY CYCLONE O/F
FROM PRIMARY CYCLONE O/F
LAUNDER C2-3320-LA-107
1341 3300-25J-023
C2-3320-LA-130
LIME CONTROL VALVE,
3320-AV-02301
1334
3300-25J-023
FLOW CONTROL,
3320-FIC-02302
1343 3300-25J-023
PRIMARY CYCLONE O/F
ROUGHER CELL NO.1 ROW
NO.2, C2-3410-CF-201
1348 3400-25J-001
FRESH WATER
1350 3300-25J-022
PRIMARY CYCLONE O/F
ROUGHER CELL NO.1 ROW
NO.1, C2-3410-CF-101
1349 3400-25J-001
SAFETY SCREEN DUMP
CYCLONE U/F LAUNDER
C2-3320-LA-230
1346
3300-25J-027
FLOW CONTROL,
3320-FIC-02702
1353 3300-25J-027
SAFETY SCREEN DUMP
CYCLONE U/F LAUNDER
C2-3330-LA-130
1337
3300-25J-023
PRIMARY CYCLONE O/F
FROM PRIMARY CYCLONE O/F
LAUNDER C2-3320-LA-207
1345 3300-25J-027
C2-3320-LA-230
LIME CONTROL VALVE,
3320-AV-02701
1347
3300-25J-027
DOMESTIC WATER
1354 5400-25J-022
VENDOR DWG NO:
C2-3300-25J-
SHIFT SAMPLE
VENDOR DWG NO:
C2-3300-25J-
3% SLOPE
SHIFT SAMPLE
SIZE:
C2-3330-AZ-101
GRINDING LINES NO.1 & NO.2 O/F PARTICLE SIZE ANALYZER
V
C2-3330-SC-105
AG
KM
LT
ISSUED FOR CLIENT REVIEW
23-Dec-11
B
RP
ISSUED FOR COMBINED REVIEW
29-Jun-11
A
12/23/2011
K. MUNDY
A. GUNSON
W. BIE
L. TAMELIN
12/21/2011
3:43:37
PM
WBS: 3330
B
PIPING AND INSTRUMENTATION DIAGRAM
BALL MILL CLASSIFICATION
3300-25J-025
MILLS NO. 1 & 2 SAMPLING
C2-3330-ST-702
SIZE:
C2-3330-SA-101
BALL MILL NO.1 CYCLONE O/F SAMPLER
C2-3330-SC-205
SIZE:
C2-3330-ES-501
CYCLONE AREA SAFETY EYE WASH NO.1
SIZE:
C2-3330-SC-105
FLOTATION SAFETY SCREEN NO.1
3330-SL-1031-R1B-48"-N
SIZE:
C2-3330-ST-701
BALL MILL NO.1 O/F SAMPLER DISCHARGE CHUTE
C2-3330-ES-501
C2-3330-ST-701
C2-3330-AZ-101
SIZE:
C2-3330-SA-201
BALL MILL NO.2 CYCLONE O/F SAMPLER
C2-3330-SA-101
1-1/2"x1/2"
SIZE:
C2-3330-AZ-102
GRINDING LINES NO.1 & NO.2 O/F IN-STREAM ANALYZER
C2-3330-AZ-102
3330
02532
XA
+
3320-SL-1033-R1A-40"-N
1-1/2"x1/2"
SIZE:
C2-3330-SC-205
FLOTATION SAFETY SCREEN NO.2
C2-3330-SA-201
SIZE:
C2-3330-ST-702
BALL MILL NO.2 O/F SAMPLER DISCHARGE CHUTE
3330-SL-1030-C1B-4"-N
3330-SL-1025-R1A-4"-N
3330-SL-1032-R1B-48"-N
AI
3310-WF-1114-C1A-4"-N
3320-SL-1022-R1B-48"-N
3330-SL-1026-R1A-4"-N
3330-SL-32502-R1A-40"-N
3330-WF-1351-C1A-1-1/2"-N
ES
ES
3330-SL-1029-C1B-4"-N
3330-SL-1027-R1A-4"-N
ES
3320-SL-1024-R1B-48"-N
AI
3330-SL-1028-R1A-4"-N
3330-WD-1026-G1A-1-1/2"-N
D
4
F
B
A
3
2
1 5 6 8
E
7
C
REV.
APPROVED
CHK.
DES.
REV. DATE REVISION DESCRIPTION
CLIENT
LEAD ENGINEER
SCALE DRAWING NUMBER
CHECK DESIGN CHECK DRAWING
DESIGNED BY DRAWN BY
APPROVAL DATE
APPROVAL DATE
APPROVED
CHK.
DES.
REV. DATE REVISION DESCRIPTION REFERENCE DRAWING No.
1:100
0
1:200
5m
10m
0
5m
10m
15m
20m
1:500
10m
0
20m
30m
40m
50m
1:1000
0
100m
50m
1:20
0
0.5m
1m
1.5m
2m
0
1:25
0.5m
1m
1.5m
1:33
1/3
2.5m
2m
0
1m
2m
3m
0
1:50
1m
2m
3m
4m
5m
CAD FILE NAME: P:0CAD000SPEM**
MODEL UPDATED:
DWG. FILE UPDATED:
MANUAL CHANGES MADE: YES NO YES NO YES NO
PROJECT MANAGER
ENGINEERING MANAGER
AREA PROJECTENGINEER
REFERENCE DRAWINGS
SAFETY SHARE:
APPROVAL DATE
CONTRACT
NO.
SAFETY SHARE :
BA6CVA1.IGR
NOTICE: THIS DRAWING HAS NOT BEEN PUBLISHED AND IS THE SOLE
PROPERTY OF FLUOR AND IS LENT TO THE BORROWER FOR THEIR
CONFIDENTIAL USE ONLY, AND IN CONSIDERATION OF THE LOAN OF THIS
DRAWING, THE BORROWER PROMISES AND AGREES TO RETURN IT UPON
REQUEST AND AGREES THAT IT WILL NOT BE REPRODUCED, COPIED LENT
OR OTHERWISE DISPOSED OF DIRECTLY OR INDIRECTLY, NOR USED FOR
ANY OTHER PURPOSE OTHER THAN WHICH IT IS FURNISHED.
NONE
Apr 2011
240K-C2-
FRESH WATER
3259 3300-25J-026
3 % SLOPE
PH
PH
V
V
V
3330-WF-1505-G1A-1-1/2"-N
3330
32502
XV
+
FI
3330
32502
XA
MISMATCH
V
M
3330
32502
HS
3330
32502
ZS
ES
V3
3330
32501
XV
+
FI
3330
32501
XA
MISMATCH
V
M
3330
32501
HS
3330
32501
ZS
ES
V3
ES
D
4
F
B
A
3
2
1 5 6 8
E
7
C
REV.
APPROVED
CHK.
DES.
REV. DATE REVISION DESCRIPTION
CLIENT
LEAD ENGINEER
SCALE DRAWING NUMBER
CHECK DESIGN CHECK DRAWING
DESIGNED BY DRAWN BY
APPROVAL DATE
APPROVAL DATE
APPROVED
CHK.
DES.
REV. DATE REVISION DESCRIPTION REFERENCE DRAWING No.
1:100
0
1:200
5m
10m
0
5m
10m
15m
20m
1:500
10m
0
20m
30m
40m
50m
1:1000
0
100m
50m
1:20
0
0.5m
1m
1.5m
2m
0
1:25
0.5m
1m
1.5m
1:33
1/3
2.5m
2m
0
1m
2m
3m
0
1:50
1m
2m
3m
4m
5m
CAD FILE NAME: P:0CAD000SPEM**
MODEL UPDATED:
DWG. FILE UPDATED:
MANUAL CHANGES MADE: YES NO YES NO YES NO
PROJECT MANAGER
ENGINEERING MANAGER
AREA PROJECTENGINEER
REFERENCE DRAWINGS
SAFETY SHARE:
APPROVAL DATE
CONTRACT
NO.
SAFETY SHARE :
BA6CVA1.IGR
NOTICE: THIS DRAWING HAS NOT BEEN PUBLISHED AND IS THE SOLE
PROPERTY OF FLUOR AND IS LENT TO THE BORROWER FOR THEIR
CONFIDENTIAL USE ONLY, AND IN CONSIDERATION OF THE LOAN OF THIS
DRAWING, THE BORROWER PROMISES AND AGREES TO RETURN IT UPON
REQUEST AND AGREES THAT IT WILL NOT BE REPRODUCED, COPIED LENT
OR OTHERWISE DISPOSED OF DIRECTLY OR INDIRECTLY, NOR USED FOR
ANY OTHER PURPOSE OTHER THAN WHICH IT IS FURNISHED.
NONE
Apr 2011
240K-C2-
3310
02602
LIC
3310
02681
XA
L, P2
LL, P1
3310
02603
FI
3310
02603
FIT
3310
02681
II
3310
02681
HS
3"x2" 3"x2"
(LAUNDER)
54"x36"
2"x1-1/4"
C2-3310-BX-201
3310
02603
FE
+
3310
02681 H
TI
3310
02681 G
TI
3310
02681 H
TE
AP
3310
02681 G
TE
AP
NOTE 2
36"
3310
02601
DX
3310
02601
DE
MISMATCH
3310
02601
DIT
MASS FLOW
3310
02601
WI
1-1/2"
3310
02601
WY
1-1/2"
3310
02608
XA
3310
02601
DI
M
3310
02601
FI
3310
02601
FIT
NOTE 3
OP/CL
3310
02608
ZS
M
OP/CL
L/R
MIN
3310
02608 B
HS
MIN
3310
02605
XV
+
3310
02604
XV
+
3310
02608
XV
+
H, P2
L, P2
T3
BRG
REAR
H, P2
HH,P1
BRG
FRONT
H, P2
HH,P1
FI
NOTES:
1. DRAIN SEQUENCE WILL OPEN THE DRAIN VALVE AFTER A SET
PERIOD OF INACTIVITY.
2. WILL OPERATE IN ACCORDANCE WITH THE DRAIN PROCEDURE
AS DESCRIBED IN THE CONTROL PHILOSOPHY.
3. DIRECT DRAIN LINES TOWARDS AREA SPILLAGE PUMP.
4. IN ADDITION TO THE STANDARD MAINTENANCE DATA,
THIS WILL ALSO CAPTURE THE PUMP LIFE VS THE MASS FLOW
TROUGH THE PUMP.
5. DELETED
6. CYCLONE FEED PUMP FLOW SWITCHES, PRESSURE SWITCHES
AND ISOLATION VALVES TO BE LOCATED ON
7. SPACE PROVIDED FOR MANUAL SAMPLING.
FI
NOTE 3
MIN
NOTE 7
3310
02601
FE
+
M
NOTE 2
C2-3310-PP-201
AFD
TO FLOOR
3310
02602
LI
TO FLOOR
3310
02602
LT
3310
02602
LE
L, P1
3310
02603
PI
3310
02603
PIT
3310
02607
PI
3310
02606
PI
BALL MILL NO.2 DISCHARGE
BALL MILL NO.2 DISCHARGE
LAUNDER, C2-3320-LA-201
1590 3300-25J-027
BALL MILL SCREEN U/S
BALL MILL FEED SCREEN,
C2-3310-SC-202
1591 3300-25J-006
BALL MILL SCREEN U/S
BAL MILL FEED SCREEN,
C2-3310-SC-201
1592 3300-25J-006
PROCESS WATER
1595 3900-25J-014
PROCESS WATER
1601 3900-25J-014
PRIMARY CYCLONE FEED
PRIMARY CYCLONE,
C2-3330-CS-201
1616 3300-25J-027
ES
3310-SL-1035-C1B-20"-N
3310-WG-1021-C1A-2"-N
3310-SL-1038-R1B-48"-N
3310-WR-1483-C1A-8"-N
SIZE:
MATERIAL:
CAPACITY:220.0 m^3
TRIM:3310-SL-1035-C1B
C2-3310-BX-201
BALL MILL CYCLONE FEED SUMP
SIZE:
MATERIAL:
MOTOR:
C2-3310-PP-201
PRIMARY CYCLONE FEED PUMP NO. 2 (AFD)
3310-WR-1118-C1A-8"-N
3310-WF-1352-C1A-1-1/2"-N
ES
3310-SL-1036-R1B-54"-N
3310-WR-1096-C1A-8"-N
ES
ES
AG
KM
LT
ISSUED FOR CLIENT REVIEW
23-Dec-11
B
RP
ISSUED FOR COMBINED REVIEW
29-Jun-11
A
12/23/2011
K. MUNDY
A. GUNSON
W. BIE
L. TAMELIN
12/23/2011
10:12:46
AM
WBS: 3310
B
PIPING AND INSTRUMENTATION DIAGRAM
BALL MILL FEED
3300-25J-026
PRIMARY CYCLONE FEED SUMP NO. 2
3310
02605
ZS
3310
02604
ZS
3310
02604
XA
3310
02605
XA
OP/CL
OP/CL
FAULT
MISMATCH
MISMATCH
FRESH WATER
GRINDING AREA HEAT
EXCHANGERS,
3287 3300-25J-054
C2-3240-PP-023/024
GLAND SEAL WATER
2945
3900-25J-023
FRESH WATER
3259 3300-25J-025
FRESH WATER
3289 3300-25J-032
3310-WF-1114-C1A-4"-N
3310-SL-1803-C1B-4"-N
3310-WF-1485-C1A-8"-N
V V
EFFLUENT
3310-WF-1113-C1A-1"-N
ES
CRUSHING PLANT
COARSE SCREENING
EFFLUENT PUMPS,
3524 3300-25J-036
C2-3300-HX-770/771/772
GRIND. AREA SUMP CONT.
3290 3300-25J-022
3310-DR-1016-C1A-8"-N
FI
T4
VENDOR DWG NO:
C2-3300-25J-
3320
32701
XA
3320
02702
FIC
3320
02781
II
M
3320
02705
PIC
3320
02781
XA
3320
02702
FIT
3320
02703
FIC
M
3320
02705
PIT
H, P2
L, P2
3320
02703
FIT
3320
02701
ZS
3320
02704
FIT
3320
02704
FIC
3320
02781
HS
M
FAULT
IN-LINE ANALYZER
PH-CONTROL,
1347 3300-25J-025
SAMPLER SAFETY SCREEN
FLOTATION SAFETY SCREEN,
C2-3330-SC-205
1346 3300-25J-025
FROTHER GLYCOL
INJECTOR, C2-3910-ZM-672
1481
3900-25J-005
SECONDARY COLLECTOR
INJECTOR, C2-3910-ZM-617
1476 3900-25J-002
PROCESS WATER
1478
3900-25J-014
MILK OF LIME
LIME DISTRIBUTION PUMPS,
C2-3920-PP-093/094
1471 3900-25J-012
PRIMARY COLLECTOR
INJECTOR, C2-3910-ZM-591
1474 3900-25J-001
GRINDING BALLS
BALL MILL TRANSFER
CONVEYOR, C2-3320-CV-034
1473 3300-25J-053
C2-3330-SA-201
DENSITY CONTROL,
3330-DIC-02512
1353
3300-25J-025
MO COLLECTOR
INJECTOR, C2-3910-ZM-581
1472 3900-25J-003
CYCLONE FEED
PRIMARY CYCLONE FEED
PUMP, C2-3310-PP-201
1475 3300-25J-026
CYCLONE O/F
BALL MILL NO.2 CYCLONE O/F
SAMPLER C2-3330-SA-201
1345 3300-25J-025
PROCESS WATER
1479
3900-25J-014
TEST REAGENT
INJECTOR, C2-3910-ZM-692
1470 3900-25J-004
PROCESS WATER
1480
3900-25J-014
NOTE 2
NOTES:
1. MILL CAPACITY IS BASED ON NEW FEED.
2. SPACE PROVIDED FOR MANUAL SAMPLING
3. HORN FOR START UP.
LAUNDER
EMERGENCY BALLS
FROM BALL BUCKET
NOTE 1
NOTE 2
TOTE BIN
NOTE 2
OP/CL
RSP
C2-3320-ML-201
3320
02702
FV
+
10"
AG
KM
LT
ISSUED FOR CLIENT REVIEW
23-Dec-11
B
RP
ISSUED FOR COMBINED REVIEW
29-Jun-11
A
12/23/2011
K. MUNDY
A. GUNSON
W. BIE
L. TAMELIN
12/23/2011
10:13:40
AM
WBS: 3320
B
PIPING AND INSTRUMENTATION DIAGRAM
BALL MILL CIRCUITS
3300-25J-027
BALL MILL NO. 2
C2-3330-LA-230
3320
02703
FE
+
16"x10"
C2-3320-SC-207
SAMPLE POINT
C2-3320-LA-201
C2-3330-CS-201
3320
02704
FE
+
16"x10"
3320
02702
FE
+
6"
C2-3330-ST-230
C2-3320-ST-220
3320
02711
XA
+
C2-3330-LA-207
3320
32701
XV
+
C2-3320-ST-209
14"
3320
02701
AV
+
16"x14"
3320
02703
FV
+
SIZE:
C2-3320-SC-207
BAL MILL NO.2 DISCH. TRAMP GRIZZLY
C2-3320-ST-290
1-1/2"x1/2"
3320
02704
FV
+
16"x14"
SIZE: 8.2 m D x 14.6 m EGL
MOTOR: 22000.00 kW
C2-3320-ML-201
BALL MIL NO. 2
C2-3320-ME-035
SIZE:
C2-3320-ME-035
BALL MILL LINER HANDLER NO.1
3320-RC-1050-C1D-1"-N
SIZE:16 x 840 mm
C2-3330-CS-201
PRIMARY CYCLONE CLUSTER
3320-WR-1484-C1A-2"-N
3320-WR-1116-C1D-16"-N
3320-WR-1119-C1A-16"-N
3320-RC-1015-C1D-1"-N
3320-RC-1094-C1D-1"-N
3330-SL-1040-R1B-48"-N
3320-RC-1133-C1D-1"-N
3320-WR-1120-C1A-16"-N
3320-RL-1009-C1B-2"-N
SIZE:
C2-3320-ST-290
BALL MILL NO. 2 TRAMP CHUTE
SIZE:
C2-3320-LA-201
BALL MILL NO. 2 DISCH. LAUNDER
3320-RF-1013-C1D-1"-N
SIZE:
C2-3320-ST-209
BALL MILL NO. 2 HOOD & CHUTE
3320-WR-1120-C1A-16"-N
3330-SL-1039-R1A-6"-N
SIZE:
C2-3330-LA-207
PRIMARY CYCLONE O/F LAUNDER
3310-SL-1038-R1B-48"-N
SIZE:
C2-3320-ST-220
BALL MILL NO. 2 FEED CHUTE
SIZE:
C2-3330-LA-230
CYCLONE U/F LAUNDER
3330-SL-1024-R1B-16"-N
3320-RL-1023-C1B-2"-N
SIZE:
C2-3330-ST-230
CYCLONE U/F LAUNDER DISCHARGE BOX
3320-WR-1485-C1A-1-1/2"-N
D
4
F
B
A
3
2
1 5 6 8
E
7
C
REV.
APPROVED
CHK.
DES.
REV. DATE REVISION DESCRIPTION
CLIENT
LEAD ENGINEER
SCALE DRAWING NUMBER
CHECK DESIGN CHECK DRAWING
DESIGNED BY DRAWN BY
APPROVAL DATE
APPROVAL DATE
APPROVED
CHK.
DES.
REV. DATE REVISION DESCRIPTION REFERENCE DRAWING No.
1:100
0
1:200
5m
10m
0
5m
10m
15m
20m
1:500
10m
0
20m
30m
40m
50m
1:1000
0
100m
50m
1:20
0
0.5m
1m
1.5m
2m
0
1:25
0.5m
1m
1.5m
1:33
1/3
2.5m
2m
0
1m
2m
3m
0
1:50
1m
2m
3m
4m
5m
CAD FILE NAME: P:0CAD000SPEM**
MODEL UPDATED:
DWG. FILE UPDATED:
MANUAL CHANGES MADE: YES NO YES NO YES NO
PROJECT MANAGER
ENGINEERING MANAGER
AREA PROJECTENGINEER
REFERENCE DRAWINGS
SAFETY SHARE:
APPROVAL DATE
CONTRACT
NO.
SAFETY SHARE :
BA6CVA1.IGR
NOTICE: THIS DRAWING HAS NOT BEEN PUBLISHED AND IS THE SOLE
PROPERTY OF FLUOR AND IS LENT TO THE BORROWER FOR THEIR
CONFIDENTIAL USE ONLY, AND IN CONSIDERATION OF THE LOAN OF THIS
DRAWING, THE BORROWER PROMISES AND AGREES TO RETURN IT UPON
REQUEST AND AGREES THAT IT WILL NOT BE REPRODUCED, COPIED LENT
OR OTHERWISE DISPOSED OF DIRECTLY OR INDIRECTLY, NOR USED FOR
ANY OTHER PURPOSE OTHER THAN WHICH IT IS FURNISHED.
NONE
Apr 2011
240K-C2-
MISMATCH
A-R
3320
32701
ZS
OP/CL
A-R
A-R (QTY 16)
BALL MILL DISCHARGE
PRIMARY CYCLONE FEED
SUMP, C2-3310-BX-201
1616 3300-25J-026
FC
ES
FC
ES
FC
ES
FI
V
V
FC
3330-AIC-02511
3330-SL-1033-R1A-40"-N
3320
32702
PI
NOTE 3
FRESH WATER
3320-LV-02307
4123 3300-25J-023
V
M
3320
02706
FE
+
3320
02706
FIT
3320-FQI-02306
4215
3300-25J-023
3320-WF- -C1A-10"-N
AG
KM
LT
ISSUED FOR CLIENT REVIEW
23-Dec-11
B
RP
ISSUED FOR COMBINED REVIEW
19-Jul-11
A
12/23/2011
K. MUNDY
A. GUNSON
W. BIE
L. TAMELIN
12/23/2011
10:14:24
AM
WBS: 3320
B
PIPING AND INSTRUMENTATION DIAGRAM
BALL MILL CIRCUITS
3300-25J-031
BALL MILL NO. 2 ANCILLARIES
D
4
F
B
A
3
2
1 5 6 8
E
7
C
REV.
APPROVED
CHK.
DES.
REV. DATE REVISION DESCRIPTION
CLIENT
LEAD ENGINEER
SCALE DRAWING NUMBER
CHECK DESIGN CHECK DRAWING
DESIGNED BY DRAWN BY
APPROVAL DATE
APPROVAL DATE
APPROVED
CHK.
DES.
REV. DATE REVISION DESCRIPTION REFERENCE DRAWING No.
1:100
0
1:200
5m
10m
0
5m
10m
15m
20m
1:500
10m
0
20m
30m
40m
50m
1:1000
0
100m
50m
1:20
0
0.5m
1m
1.5m
2m
0
1:25
0.5m
1m
1.5m
1:33
1/3
2.5m
2m
0
1m
2m
3m
0
1:50
1m
2m
3m
4m
5m
CAD FILE NAME: P:0CAD000SPEM**
MODEL UPDATED:
DWG. FILE UPDATED:
MANUAL CHANGES MADE: YES NO YES NO YES NO
PROJECT MANAGER
ENGINEERING MANAGER
AREA PROJECTENGINEER
REFERENCE DRAWINGS
SAFETY SHARE:
APPROVAL DATE
CONTRACT
NO.
SAFETY SHARE :
BA6CVA1.IGR
NOTICE: THIS DRAWING HAS NOT BEEN PUBLISHED AND IS THE SOLE
PROPERTY OF FLUOR AND IS LENT TO THE BORROWER FOR THEIR
CONFIDENTIAL USE ONLY, AND IN CONSIDERATION OF THE LOAN OF THIS
DRAWING, THE BORROWER PROMISES AND AGREES TO RETURN IT UPON
REQUEST AND AGREES THAT IT WILL NOT BE REPRODUCED, COPIED LENT
OR OTHERWISE DISPOSED OF DIRECTLY OR INDIRECTLY, NOR USED FOR
ANY OTHER PURPOSE OTHER THAN WHICH IT IS FURNISHED.
NONE
Apr 2011
240K-C2-
3320
32212
TI
3320
33416
PAL
BEARING
SEGMENT
#4
3320
32202
TI
H, P2
BEARING
SEGMENT
#3
THRUST
BEARING
LUBE PUMP
(STAND-BY)
3320
32221
PI
3320
33415
PI
L, P2
H, P2
THRUST
BEARING
LUBE PUMP
3320
32231
PI
3320
33407
FAL
BEARING
SEGMENT
#1
CIRCULATING
PUMP
(STAND-BY)
3320
33503
XA
3320
33223
LA
L, P2
H, P2
CIRCULATING
PUMP
3320
32211
PI
LOW PRESSURE
STAND-BY
PUMP CONTROL
BEARING
SEGMENT
#2
ACCUMULATOR
PUMP
(STAND-BY)
3320
32201
PI
3320
33208
PAL
L, P2
H, P2
ACCUMULATOR
PUMP
P.O NO.:
VENDOR DWG NO.:
VENDOR:
3320
03102
TE
H, P2
CIRCULATING
PUMP
BEARING
SEGMENT #3 & #4
LUBE PUMP
(STAND BY)
3320
03102
TI
3320
33222
PDI
BEARING SEGMENT #3 & #4
STAND-BY PUMP CONTROL
BEARING
SEGMENT #3 & #4
LUBE PUMP
3320
03101
TI
3320
33218
PAL
ACCUMULATOR #2
BEARING
SEGMENT #1 & #2
LUBE PUMP
(STAND BY)
3320
03101
TE
3320
33221
FAL
ACCUMULATOR #1
BEARING
SEGMENT #1 & #2
LUBE PUMP
3320
03104
TE
3320
33219
PAL
P2
CIRCULATING
PUMP
(STAND-BY)
3320
03104
TI
3320
33223
TI
P2
CIRCULATING
PUMP
3320
03105
FAL
ACCUMULATOR
#2
P2
ACCUMULATOR
PUMP
(STAND-BY)
3320
03105
FISL
ACCUMULATOR
PUMP CONTROL
ACCUMULATOR
PUMP CONTROL
BEARING
SEGMENT #3 & #4
LUBE PUMP
(STAND BY)
3320
03103
TI
3320
33209
PAL
BEARING SEGMENT #1 & #2
STAND-BY PUMP CONTROL
BEARING
SEGMENT #3 & #4
LUBE PUMP
3320
03103
TE
3320
33216
PAL
OIL TANK
BEARING
SEGMENT #1 & #2
LUBE PUMP
(STAND BY)
LUBE TANK
OIL
3320
33217
PI
P2
BEARING
SEGMENT #1 & #2
LUBE PUMP
AIR GAP
SENSORS
A-H, J
3320
33207
PI
LUBE OIL
FILTER
CYCLOCONVERTER
COOLING WATER
PUMP
(STAND BY)
H, P2
3320
33220
PI
HH, P2
CYCLOCONVERTER
COOLING WATER
PUMP
H, P2
P2
P2
FAN #2
RIGHT
3320
33206
PAL
OIL
TANK
FAN #2
LEFT
ACCUMULATOR
PUMP
H, P2
CIRCULATING
STAND-BY
PUMP CONTROL
FAN #1
RIGHT
CIRCULATING STAND-BY
PUMP CONTROL
CIRCULATING
OIL
FAN #1
LEFT
COMMON
ALARM
3320
33406
PDI
LOW PRESSURE
OIL
OVERPRESSURE
FAN RIGHT
P2
LUBE OIL
FILTER
OVERPRESSURE
FAN LEFT
LUBE
TANK OIL
P2
MILL NO.2 CYCLOCONVERTER CONTROL
3320
33420
XA
COMMON
ALARM
LEAK
CONTROL
H, P2
P2
MILL NO.2 MOTOR CONTROL
3320
33225
XA
P2
P2
MILL NO.2 FLOATING BEARING
3320
33410
PAL
P2
MILL NO.2 FIXED BEARING
3320
33409
TI
H, P2
MILL NO.2 FLOATING BEARING LUBE UNIT
CIRCULATING
OIL
L, P2
MILL NO.2 FIXED BEARING LUBE UNIT
3320
33408
LALL
P2
BEARING
SEGMENT
#1
3320
33405
PAL
P2
BEARING
SEGMENT
#2
P2
CIRCULATING
PUMP
BEARING
SEGMENT
#3
3320
33115
LAH
L, P2
H, P2
BEARING
SEGMENT
#1
3320-WF-1361-C1A-2"-N
A, B
L, P2
H, P2
LL, P2
BEARING
SEGMENT
#2
3320-WF-1358-C1A-2"-N
3320
33114
MI
BEARING SEGMENT #1 & #2
STAND-BY PUMP CONTROL
BEARING
SEGMENT
#3
3320-WF-1360-C1A-4"-N
3320
32104
TI
MILL BRAKE CONTROLS
THRUST
BEARING
SEGMENT
#1
3320-WF-1359-C1A-4"-N
3320
32103
FI
P2
THRUST
BEARING
SEGMENT
#2
3320
32102
LAH
CIRCULATING
WATER
THRUST
BEARING
SEGMENT
#3
3320
33634
TI
COOLING
WATER
PUMPS
BEARING
SEGMENT
#4
3320
33624
TI
EXPANSION
TANK
BEARING
SEGMENT
#4
3320
33614
TI
ACCUMULATOR
#1
THRUST
BEARING
SEGMENT
#4
3320
33604
TI
BEARING SEGMENT #3 & #4
STAND-BY PUMP CONTROL
L, P2
H, P2
3320
33633
TI
3320
33511
XA
L, P2
H, P2
3320
33623
TI
3320
33501
XA
L, P2
H, P2
3320
33613
TI
3320
33401
XA
L, P2
H, P2
3320
33603
TI
3320
33411
XA
L, P2
H, P2
3320
32110
TI
3320
33402
XA
L, P2
H, P2
3320
32109
TI
3320
33412
XA
L, P2
H, P2
COMMON
ALARM
3320
32108
CI
3320
33403
XA
L, P2
H, P2
3320
33110
XA
3320
32107
PI
3320
33413
XA
L, P2
H, P2
3320
32106
LI
3320
33414
XA
H, P2
3320
32105
TI
3320
33404
XA
H, P2
3320
33632
PI
3320
33215
XA
H, P2
3320
33622
PI
3320
33205
XA
H, P2
3320
33612
PI
3320
33214
XA
WATER LEAK
SENSOR LEFT
3320
33602
PI
3320
33203
XA
COOLING AIR
DISCHARGE
A-B
BEARING
SEGMENT
#1
3320
33212
XA
COOLING
AIR INTAKE
A-B
3320
33601
SI
3320
33202
XA
SEALING
SYSTEM WEAR
A-B
BEARING
SEGMENT
#2
3320
33204
XA
STATOR
WINDING
A-F
3320
33611
SI
3320
33213
XA
COOLING
WATER IN
BEARING
SEGMENT
#4
3320
33211
XA
COOLING
WATER
3320
33631
SI
3320
33201
XA
H, P2
HH, P2
COMMON
ALARM
BEARING
SEGMENT
#3
3320
32111
XA
L, P2
LL, P2
3320
32110
XA
3320
33621
SI
3320
32101
XA
WATER LEAK
SENSOR RIGHT
3320
33514
LALL
3320
33113
XA
COOLANT
FROM HEAT
EXCHANGER
3320
33515
TA
3320
33112
XA
COOLANT
TO HEAT
EXCHANGER
V
3320
33514
LAL
3320
33111
XA
H, P2
HH, P2
V
3320
33516
PDAH
3320
33103
XA
L, P2
V
3320
33517
ZL
3320
33102
XA
L, P2
LL, P2
V
3320
33507
ZL
3320
33101
XA
COOLING
WATER
OUT
V
3320
33506
PDAH
3320
33104
TI
H, P2
HH, P2
3320
33505
TA
P.O NO.:
VENDOR DWG NO.:
VENDOR:
3320
33105
TI
H, P2
HH, P2
3320
33504
LALL
3320
33106
TI
BEARING
SEGMENT
#4
P.O NO.:
VENDOR DWG NO.:
VENDOR:
3320
33504
LAL
P2
BEARING
SEGMENT
#3
3320
32232
TI
3320
33107
LAH
BEARING
SEGMENT
#4
P.O NO.:
VENDOR DWG NO.:
VENDOR:
3320
32222
TI
3320
33108
XA
BEARING
SEGMENT
#3
3320-WF-1362-C1A-2"-N
3320
32233
SI
3320
33109
ZA
BEARING
SEGMENT
#2
3320-WF-1355-C1A-4"-N
P.O NO.:
VENDOR DWG NO.:
VENDOR:
3320
32223
SI
3320
33419
PAL
BEARING
SEGMENT
#1
3320-WF-1354-C1A-4"-N
3320
32213
SI
L,P2
LL, P2
BEARING
SEGMENT
#1
3320-WF-1353-C1A-2"-N
COMMON
ALARM
COMMON
ALARM
P.O NO.:
VENDOR DWG NO.:
VENDOR:
3320
32203
SI
3320
33418
PAL
BEARING
SEGMENT
#2
3320-WF-1357-C1A-2"-N
3320
32210
XA
3320
33610
XA
H, P2
HH, P2
3320
33417
PAL
L, P2
H, P2
3320-WF-1356-C1A-2"-N
P.O NO.:
VENDOR DWG NO.:
VENDOR:
L, P2
H, P2
L, P2
H, P2
L, P2
H, P2
L, P2
H, P2
HH, P1
C2-3320-ML-201
CLOSED LOOP CWR
GRINDING AREA HEAT
EXCHANGERS,
3870 3300-25J-057
CLOSED LOOP CWR
GRINDING AREA HEAT
EXCHANGERS,
3871 3300-25J-057
CLOSED LOOP CWR
GRINDING AREA HEAT
EXCHANGERS,
3874 3300-25J-057
CLOSED LOOP CWR
GRINDING AREA HEAT
EXCHANGERS,
3872 3300-25J-057
CLOSED LOOP CWR
GRINDING AREA HEAT
EXCHANGERS,
3873 3300-25J-057
C2-3320-HX-770/771/772
C2-3320-HX-770/771/772
C2-3320-HX-770/771/772
C2-3320-HX-770/771/772
C2-3320-HX-770/771/772
CLOSED LOOP CWS
GRINDING COOLING SYSTEM
PUMPS, C2-3320-PP-765/766
3959 3300-25J-056
CLOSED LOOP CWS
GRINDING COOLING SYSTEM
PUMPS, C2-3320-PP-765/766
3957 3300-25J-056
CLOSED LOOP CWS
GRINDING COOLING SYSTEM
PUMPS, C2-3320-PP-765/766
3958 3300-25J-056
CLOSED LOOP CWS
GRINDING COOLING SYSTEM
PUMPS, C2-3320-PP-765/766
3955 3300-25J-056
CLOSED LOOP CWS
GRINDING COOLING SYSTEM
PUMPS, C2-3320-PP-765/766
3956 3300-25J-056
T3
3310
03204
XA
OP/CL
3310
03281 G
TI
BRG
FRONT
H, P2
HH,P1
3310
03201
DE
AP
3310
03202
LI
3310
03205
ZS 3310
03201
FIT
3310
03201
DIT
3310
03203
PI
L, P1
3310
03203
FIT
M
3310
03202
LT
3310
03203
PIT
3310
03201
DI
3310
03281
HS
3310
03201
WY
3310
03281
XA
3310
03208
ZS
3310
03202
LIC
AP
M
3310
03208 B
HS
OP/CL
L/R
3310
03207
PI
3310
03201
DX
3310
03208
XA
3310
03281 H
TI
3310
03204
ZS
3310
03281 H
TE
3310
03205
XA
3310
03206
PI
3310
03281 G
TE
3310
03201
FI
3310
03281
II
3310
03201
WI
3310
03203
FI
L, P2
LL, P1
M
3310
03202
LE
PROCESS WATER
1624 3900-25J-014
PRIMARY CYCLONE FEED
PRIMARY CYCLONE,
C2-3330-CS-301
1639 3300-25J-033
BALL MILL SCREEN U/S
BALL MILL FEED SCREEN,
C2-3310-SC-302
1621 3300-25J-009
PROCESS WATER
1629 3900-25J-014
BALL MILL NO.3 DISCHARGE
BALL MILL NO.3 DISCHARGE
LAUNDER, C2-3320-LA-301
1619 3300-25J-033
BALL MILL SCREEN U/S
BALL MILL FEED SCREEN,
C2-3310-SC-301
1620 3300-25J-009
OP/CL
MISMATCH
MISMATCH
MIN
NOTE 3
FAULT
H, P2
L, P2
OP/CL
NOTE 7
MIN
(LAUNDER)
AFD
MASS FLOW
NOTE 2
NOTE 3
BRG
REAR
H, P2
HH,P1
NOTES:
1. DRAIN SEQUENCE WILL OPEN THE DRAIN VALVE AFTER A SET
PERIOD OF INACTIVITY.
2. WILL OPERATE IN ACCORDANCE WITH THE DRAIN PROCEDURE
AS DESCRIBED IN THE CONTROL PHILOSOPHY.
3. DIRECT DRAIN LINES TOWARDS AREA SPILLAGE PUMP.
4. IN ADDITION TO THE STANDARD MAINTENANCE DATA,
THIS WILL ALSO CAPTURE THE PUMP LIFE VS THE MASS FLOW
TROUGH THE PUMP.
5. DELETED
6. CYCLONE FEED PUMP FLOW SWITCHES, PRESSURE SWITCHES
AND ISOLATION VALVES TO BE LOCATED ON THE OPERATING LEVEL.
7. SPACE PROVIDED FOR MANUAL SAMPLING.
NOTE 2
MISMATCH
MIN
FI
FI
AG
KM
LT
ISSUED FOR CLIENT REVIEW
23-Dec-11
B
RP
ISSUED FOR COMBINED REVIEW
29-Jun-11
A
12/23/2011
K. MUNDY
A. GUNSON
W. BIE
L. TAMELIN
12/21/2011
3:17:00
PM
WBS: 3310
B
PIPING AND INSTRUMENTATION DIAGRAM
BALL MILL FEED
3300-25J-032
PRIMARY CYCLONE FEED SUMP NO. 3
TO FLOOR
36"
C2-3310-PP-301
1-1/2"
C2-3310-BX-301
3310
03201
FE
+
3"x2"
54"x36"
3310
03203
FE
+
3310
03205
XV
+
3310
03208
XV
+
3"x2"
2"x1-1/4"
3310
03204
XV
+
1-1/2"
3310-WF-1363-C1A-1-1/2"-N
ES
3310-SL-1044-R1B-48"-N
ES
TO FLOOR
3310-SL-1042-R1B-54"-N
ES
3310-WR-1090-C1A-8"-N
3310-WR-1486-C1A-8"-N
3310-WG-1022-C1A-2"-N
SIZE:
MATERIAL:
CAPACITY:220.0 m^3
TRIM:3310-SL-1041-C1B
C2-3310-BX-301
BALL MILL CYCLONE FEED SUMP
3310-WR-1123-C1A-8"-N
ES
SIZE:
MATERIAL:
MOTOR:
C2-3310-PP-301
PRIMARY CYCLONE FEED PUMP NO.3 (AFD)
D
4
F
B
A
3
2
1 5 6 8
E
7
C
REV.
APPROVED
CHK.
DES.
REV. DATE REVISION DESCRIPTION
CLIENT
LEAD ENGINEER
SCALE DRAWING NUMBER
CHECK DESIGN CHECK DRAWING
DESIGNED BY DRAWN BY
APPROVAL DATE
APPROVAL DATE
APPROVED
CHK.
DES.
REV. DATE REVISION DESCRIPTION REFERENCE DRAWING No.
1:100
0
1:200
5m
10m
0
5m
10m
15m
20m
1:500
10m
0
20m
30m
40m
50m
1:1000
0
100m
50m
1:20
0
0.5m
1m
1.5m
2m
0
1:25
0.5m
1m
1.5m
1:33
1/3
2.5m
2m
0
1m
2m
3m
0
1:50
1m
2m
3m
4m
5m
CAD FILE NAME: P:0CAD000SPEM**
MODEL UPDATED:
DWG. FILE UPDATED:
MANUAL CHANGES MADE: YES NO YES NO YES NO
PROJECT MANAGER
ENGINEERING MANAGER
AREA PROJECTENGINEER
REFERENCE DRAWINGS
SAFETY SHARE:
APPROVAL DATE
CONTRACT
NO.
SAFETY SHARE :
BA6CVA1.IGR
NOTICE: THIS DRAWING HAS NOT BEEN PUBLISHED AND IS THE SOLE
PROPERTY OF FLUOR AND IS LENT TO THE BORROWER FOR THEIR
CONFIDENTIAL USE ONLY, AND IN CONSIDERATION OF THE LOAN OF THIS
DRAWING, THE BORROWER PROMISES AND AGREES TO RETURN IT UPON
REQUEST AND AGREES THAT IT WILL NOT BE REPRODUCED, COPIED LENT
OR OTHERWISE DISPOSED OF DIRECTLY OR INDIRECTLY, NOR USED FOR
ANY OTHER PURPOSE OTHER THAN WHICH IT IS FURNISHED.
NONE
Apr 2011
240K-C2-
GLAND SEAL WATER
2946
3900-25J-023
FRESH WATER
2153 3300-25J-035
3310-SL-1804-C1B-4"-N
3310-WF-1486-C1A-8"-N
3310-WF-1114-C1A-8"-N
FRESH WATER
GRINDING AREA HEAT
EXCHANGERS,
3278 3300-25J-054
FI
V V
C2-3240-PP-023/024
EFFLUENT
ES
3310-WF-1112-C1A-1"-N
FRESH WATER
3289 3300-25J-026
CRUSHING PLANT
COARSE SCREENING
EFFLUENT PUMPS,
3525 3300-25J-036
3310-WF-1114-C1A-8"-N
C2-3300-HX-770/771/772
T4
3320
33301
XA
3320
33301
ZS
OP/CL
3320
03301
ZS
M
3320
03303
FIC
3320
03381
HS
3320
03381
II
3320
03381
XA
3320
03304
FIC
3320
03305
PIC
3320
03305
PIT
3320
03304
FIT
M
M
3320
03303
FIT
3320
03302
FIC
3320
03302
FIT
IN-LINE ANALYZER
PH-CONTROL,
1502 3300-25J-035
PRIMARY CYCLONE O/F
BALL MILL NO.1 CYCLONE O/F
SAMPLER, C2-3330-SA-301
1498 3300-25J-035
CYCLONE FEED
PRIMARY CYCLONE FEED
PUMP C2-3310-PP-301
1500 3300-25J-032
PROCESS WATER
1496
3900-25J-014
PROCESS WATER
1494
3900-25J-014
FROTHER GLYCOL
INJECTOR, C2-3910-ZM-673
1497
3900-25J-005
MILK OF LIME
LIME DISTRIBUTION PUMPS,
C2-3920-PP-093/094
1491 3900-25J-012
PRIMARY COLLECTOR
INJECTOR, C2-3910-ZM-592
1489 3900-25J-001
GRINDING BALLS
BAL MILL TRANSFER
CONVEYOR, C2-3320-CV-034
1501 3300-25J-053
SECONDARY COLLECTOR
INJECTOR, C2-3910-ZM-618
1488 3900-25J-002
TEST REAGENT
INJECTOR, C2-3910-ZM-693
1492 3900-25J-004
SAMPLER SAFETY SCREEN
FLOTATION SAFETY SCREEN,
C2-3330-SC-305
1493 3300-25J-035
BALL MILL DISCHARGE
PRIMARY CYCLONE FEED
SUMP, C2-3310-BX-301
1619 3300-25J-032
DENSITY CONTROL,
3330-DIC-03502
1503
3300-25J-035
PROCESS WATER
1495
3900-25J-014
MO COLLECTOR
INJECTOR, C2-3910-ZM-582
1490 3900-25J-003
NOTE 3
MISMATCH
A-R
A-R
A-R (QTY 16)
RSP
DWG NO
OP/CL
3330-AIC-03501
FAULT
NOTE 2
LAUNDER
VENDOR
TOTE BIN
H, P2
L, P2
NOTE 2
EMERGENCY BALLS
FROM BALL BUCKET
NOTE 1
NOTES:
1. MILL CAPACITY IS BASED ON NEW FEED.
2. SPACE PROVIDED FOR MANUAL SAMPLING
3. HORN FOR START UP.
NOTE 2
3320-SL-1057-R1A-40"-N
16"x10"
14"
AG
KM
LT
ISSUED FOR CLIENT REVIEW
23-Dec-11
B
RP
ISSUED FOR COMBINED REVIEW
29-Jun-11
A
12/23/2011
K. MUNDY
A. GUNSON
W. BIE
L. TAMELIN
12/22/2011
4:42:31
PM
WBS: 3320
B
PIPING AND INSTRUMENTATION DIAGRAM
BALL MILL CIRCUITS
3300-25J-033
BALL MILL NO. 3
3320
03302
FV
+
3320
03301
AV
+
SIZE:
C2-3320-SC-307
BAL MILL NO. 3 DISCH. TRAMP GRIZZLY
C2-3330-ST-330
ES
FC
FC
ES
FC
ES
10"
C2-3320-ML-301
FI
V
V
FC
C2-3320-ST-320
16"x14"
SAMPLE POINT
C2-3330-LA-307
3320
03304
FE
+
3320
33301
XV
+
3320
03311
XA
+
16"x10"
C2-3320-SC-307
6"
C2-3330-CS-301
3320
03302
FE
+
C2-3330-LA-330
C2-3320-ST-390
3320
03304
FV
+
16"x14"
1-1/2"x1/2"
C2-3320-LA-301
3320
03303
FE
+
C2-3320-ST-309
3320
03303
FV
+
SIZE:
C2-3320-ME-036
BALL MILL LINER HANDLER NO.2
C2-3320-ME-036
SIZE: 8.2 m D x 14.6 m EGL
MOTOR: 22.00 kW
C2-3320-ML-301
BALL MILL NO. 3
SIZE:
C2-3330-ST-330
CYCLONE U/F LAUNDER DISCHARGE BOX
3320-RC-1016-C1D-1"-N
3320-RC-1095-C1D-1"-N
3320-WR-1124-C1D-16"-N
3320-RL-1010-C1B-2"-N
3320-WR-1487-C1A-2"-N
SIZE:
C2-3320-ST-309
BALL MILL NO. 3 HOOD & CHUTE
3330-SL-1048-R1B-48"-N
3330-SL-1047-R1B-16"-N
3320-RF-1014-C1D-1"-N
SIZE:
C2-3330-LA-330
CYCLONE U/F LAUNDER
SIZE:
C2-3320-ST-390
BALL MILL NO. 3 TRAMP CHUTE
3310-SL-1044-R1B-48"-N
3320-WR-1121-C1A-16"-N
SIZE:
C2-3320-ST-320
BALL MILL NO. 3 FEED CHUTE
3320-WR-1488-C1A-1-1/2"-N
3330-SL-1046-R1A-6"-N
3320-WR-1125-C1A-16"-N
SIZE:
C2-3320-LA-301
BALL MILL NO. 3 DISCH. LAUNDER
3320-RL-1024-C1B-2"-N
SIZE:16 x 840 mm
C2-3330-CS-301
PRIMARY CYCLONE CLUSTER
SIZE:
C2-3330-LA-307
PRIMARY CYCLONE O/F LAUNDER
3320-RC-1051-C1D-1"-N
3320-WR-1125-C1A-16"-N
3320-RC-1134-C1D-1"-N
D
4
F
B
A
3
2
1 5 6 8
E
7
C
REV.
APPROVED
CHK.
DES.
REV. DATE REVISION DESCRIPTION
CLIENT
LEAD ENGINEER
SCALE DRAWING NUMBER
CHECK DESIGN CHECK DRAWING
DESIGNED BY DRAWN BY
APPROVAL DATE
APPROVAL DATE
APPROVED
CHK.
DES.
REV. DATE REVISION DESCRIPTION REFERENCE DRAWING No.
1:100
0
1:200
5m
10m
0
5m
10m
15m
20m
1:500
10m
0
20m
30m
40m
50m
1:1000
0
100m
50m
1:20
0
0.5m
1m
1.5m
2m
0
1:25
0.5m
1m
1.5m
1:33
1/3
2.5m
2m
0
1m
2m
3m
0
1:50
1m
2m
3m
4m
5m
CAD FILE NAME: P:0CAD000SPEM**
MODEL UPDATED:
DWG. FILE UPDATED:
MANUAL CHANGES MADE: YES NO YES NO YES NO
PROJECT MANAGER
ENGINEERING MANAGER
AREA PROJECTENGINEER
REFERENCE DRAWINGS
SAFETY SHARE:
APPROVAL DATE
CONTRACT
NO.
SAFETY SHARE :
BA6CVA1.IGR
NOTICE: THIS DRAWING HAS NOT BEEN PUBLISHED AND IS THE SOLE
PROPERTY OF FLUOR AND IS LENT TO THE BORROWER FOR THEIR
CONFIDENTIAL USE ONLY, AND IN CONSIDERATION OF THE LOAN OF THIS
DRAWING, THE BORROWER PROMISES AND AGREES TO RETURN IT UPON
REQUEST AND AGREES THAT IT WILL NOT BE REPRODUCED, COPIED LENT
OR OTHERWISE DISPOSED OF DIRECTLY OR INDIRECTLY, NOR USED FOR
ANY OTHER PURPOSE OTHER THAN WHICH IT IS FURNISHED.
NONE
Apr 2011
240K-C2-
FRESH WATER
3320-LV-02307
4125 3300-25J-023
3320
33302
PI
V
M
3320-WF- -C1A-10"-N
3320
03306
FE
+
3320
03306
FIT
3320-FQI-02306
4209
3300-25J-023
ACCUMULATOR
PUMP
P.O NO.:
VENDOR DWG NO.:
VENDOR:
P.O NO.:
VENDOR DWG NO.:
VENDOR:
P.O NO.:
VENDOR DWG NO.:
VENDOR:
P.O NO.:
VENDOR DWG NO.:
VENDOR:
P.O NO.:
VENDOR DWG NO.:
VENDOR:
P.O NO.:
VENDOR DWG NO.:
VENDOR:
P.O NO.:
VENDOR DWG NO.:
VENDOR:
3320
36313
TI
3320
33913
XA
3320
33901
XA
3320
34007
PI
COOLING
WATER
PUMPS
3320
33807
LAH P2
3320
34421
PI
3320
34211
XA
3320
33906
PAL
P2
3320
33918
PAL
3320
36333
TI
3320
34412
TI
H, P2
HH, P2
3320
34215
TA
3320
03405
FAL
3320
36324
TI
3320
33920
PI
3320
33904
XA
3320
34403
SI
3320
33912
XA
3320
33405
PAL
3320
34119
PAL
3320
34111
XA
3320
34201
XA
3320
33801
XA
3320
34109
TI
3320
34214
LALL
3320
33813
XA
3320
34006
LI
3320
34113
XA
3320
34431
PI
3320
03405
FISL
3320
34214
LAL
3320
34204
LALL
3320
33911
XA
3320
34011
XA
3320
34217
ZL
3320
36303
TI
3320
36331
SI
BEARING
SEGMENT
#4
3320
33903
XA
3320
33907
PI
3320
34009
TI
COOLANT
TO HEAT
EXCHANGER
3320
33902
XA
3320
34413
SI
3320
03404
TE
3320
33809
ZA
3320
34110
PAL
H, P2
LUBE
TANK OIL
3320
34107
FAL
3320
03401
TI
3320
34411
PI
3320
34112
XA
3320
33814
MI
A, B
3320
34003
FI
3320
33916
PAL
3320
36301
SI
BEARING
SEGMENT
#1
3320
34010
XA COMMON
ALARM
3320
33905
XA
3320
33804
TI
3320
36322
PI
3320
34114
XA
3320
34207
ZL
3320
03402
TI
3320
34001
XA
3320
36321
SI
BEARING
SEGMENT
#3
3320
34216
PDAH
3320
36332
PI
3320
33805
TI
3320
34432
TI
3320
33811
XA
3320
33908
PAL
LOW PRESSURE
STAND-BY
PUMP CONTROL
3320
03402
TE
3320
33812
XA
3320
34204
LAL
3320
34005
TI
3320
03403
TI
3320
34103
XA
3320
34120
XA
3320
33919
PAL
3320
34433
SI
3320
34401
PI
3320
34203
XA
3320
34205
TA
3320
33914
XA
3320
34010
TI
COOLANT
FROM HEAT
EXCHANGER
3320
34002
LAH
3320
34004
TI
3320
34104
XA
3320
34206
PDAH
3320
33810
XA COMMON
ALARM
3320
36312
PI
3320
33923
TI
3320
33923
LA
3320
36302
PI
3320
33915
XA
3320
34117
PAL
3320
33917
PI
3320
03403
TE
3320
36334
TI
3320
36314
TI
3320
34116
PAL
3320
33909
PAL
ACCUMULATOR
#2
ACCUMULATOR
PUMP CONTROL
3320
03401
TE
3320
34008
CI
3320
34423
SI
3320
34422
TI
3320
33808
XA
3320
34402
TI
3320
34106
PDI
CIRCULATING STAND-BY
PUMP CONTROL
H, P2
3320
33806
TI
3320
33922
PDI
3320
03404
TI
3320
33921
FAL
3320
33803
XA
3320
34115
PI
H, P2
3320
36323
TI
3320
36304
TI
3320
33815
LAH
3320
34118
PAL
L,P2
LL, P2
3320
34102
XA
3320
36310
XA COMMON
ALARM
3320
33925
XA COMMON
ALARM
3320
34108
LALL
CIRCULATING
OIL
3320
34410
XA COMMON
ALARM
3320
36311
SI
BEARING
SEGMENT
#2
3320
33802
XA
3320
34101
XA
CLOSED LOOP CWR
GRINDING AREA HEAT
EXCHANGERS,
3879 3300-25J-057
C2-3320-HX-770/771/772
CLOSED LOOP CWR
GRINDING AREA HEAT
EXCHANGERS,
3875 3300-25J-057
CLOSED LOOP CWR
GRINDING AREA HEAT
EXCHANGERS,
3876 3300-25J-057
CLOSED LOOP CWR
GRINDING AREA HEAT
EXCHANGERS,
3877 3300-25J-057
CLOSED LOOP CWR
GRINDING AREA HEAT
EXCHANGERS,
3878 3300-25J-057
C2-3320-HX-770/771/772
CLOSED LOOP CWS
GRINDING COOLING SYSTEM
PUMPS, C2-3320-PP-765/766
3944 3300-25J-056
COOLING WATER SUPPLY
GRINDING COOLING SYSTEM
PUMPS, C2-3320-PP-765/766
3940 3300-25J-056
CLOSED LOOP CWS
GRINDING COOLING SYSTEM
PUMPS, C2-3320-PP-765/766
3941 3300-25J-056
CLOSED LOOP CWS
GRINDING COOLING SYSTEM
PUMPS, C2-3320-PP-765/766
3942 3300-25J-056
CLOSED LOOP CWS
GRINDING COOLING SYSTEM
PUMPS, C2-3320-PP-765/766
3943 3300-25J-056
THRUST
BEARING
SEGMENT
#2
CIRCULATING
PUMP
COOLING
AIR INTAKE
A-B
MILL NO.3 FIXED BEARING LUBE UNIT
CIRCULATING
WATER
OVERPRESSURE
FAN LEFT
MILL NO.3 MOTOR CONTROL
P2
P2
FAN #1
RIGHT
P2
L, P2
H, P2
AIR GAP
SENSORS
A-H, J
L, P2
H, P2
BEARING
SEGMENT
#2
H, P2
CIRCULATING
PUMP
BEARING
SEGMENT
#4
THRUST
BEARING
SEGMENT
#1
L, P2
H, P2
EXPANSION
TANK
OIL TANK
P2
P2
L, P2
H, P2
BEARING SEGMENT #1 & #2
STAND-BY PUMP CONTROL
BEARING
SEGMENT
#1
MILL NO.3 FLOATING BEARING
THRUST
BEARING
LUBE PUMP
MILL NO.3 CYCLOCONVERTER CONTROL
L, P2
H, P2
H, P2
HH, P2
LUBE OIL
FILTER
BEARING
SEGMENT #1 & #2
LUBE PUMP
(STAND BY)
BEARING
SEGMENT
#2
BEARING
SEGMENT
#1
L, P2
H, P2
BEARING
SEGMENT
#4
ACCUMULATOR #2
CYCLOCONVERTER
COOLING WATER
PUMP
H, P2
HH, P2
LUBE TANK
OIL
THRUST
BEARING
LUBE PUMP
(STAND-BY)
H, P2
FAN #1
LEFT
MILL BRAKE CONTROLS
LUBE OIL
FILTER
BEARING SEGMENT #3 & #4
STAND-BY PUMP CONTROL
BEARING SEGMENT #1 & #2
STAND-BY PUMP CONTROL
H, P2
HH, P2
SEALING
SYSTEM WEAR
A-B
H, P2
BEARING
SEGMENT #3 & #4
LUBE PUMP
(STAND BY)
BEARING
SEGMENT #1 & #2
LUBE PUMP
(STAND BY)
COMMON
ALARM
BEARING
SEGMENT
#1
L, P2
H, P2
CIRCULATING
PUMP
WATER LEAK
SENSOR RIGHT
CIRCULATING
PUMP
(STAND-BY)
L, P2
H, P2
HH, P2
L, P2
H, P2
P2
L, P2
H, P2
LL, P2
COOLING
WATER
OUT
CIRCULATING
PUMP
(STAND-BY)
P2
P2
BEARING
SEGMENT
#2
CIRCULATING
PUMP
P2
H, P2
BEARING
SEGMENT
#3
CIRCULATING
OIL
P2
THRUST
BEARING
SEGMENT
#4
FAN #2
RIGHT
H, P2
MILL NO.3 FLOATING BEARING LUBE UNIT
BEARING
SEGMENT #3 & #4
LUBE PUMP
BEARING
SEGMENT
#3
LOW PRESSURE
OIL
ACCUMULATOR #1
BEARING
SEGMENT #1 & #2
LUBE PUMP
CYCLOCONVERTER
COOLING WATER
PUMP
(STAND BY)
P2
L, P2
H, P2
BEARING
SEGMENT
#3
BEARING SEGMENT #3 & #4
STAND-BY PUMP CONTROL
CIRCULATING
STAND-BY
PUMP CONTROL
BEARING
SEGMENT
#3
H, P2 L, P2
H, P2
HH, P2
OIL
TANK
BEARING
SEGMENT #3 & #4
LUBE PUMP
(STAND BY)
L, P2
H, P2
BEARING
SEGMENT #3 & #4
LUBE PUMP
BEARING
SEGMENT
#1
P2
FAN #2
LEFT
WATER LEAK
SENSOR LEFT
COOLING
WATER
L, P2
H, P2
BEARING
SEGMENT
#1
STATOR
WINDING
A-F
P2
ACCUMULATOR
PUMP CONTROL
L, P2
H, P2
L, P2
H, P2
BEARING
SEGMENT
#4
BEARING
SEGMENT
#2
COOLING AIR
DISCHARGE
A-B
L, P2
L, P2
LL, P2
ACCUMULATOR
#1
P2
L, P2
H, P2
THRUST
BEARING
SEGMENT
#3
OVERPRESSURE
FAN RIGHT
BEARING
SEGMENT
#4
ACCUMULATOR
PUMP
(STAND-BY)
ACCUMULATOR
PUMP
(STAND-BY)
ACCUMULATOR
PUMP
BEARING
SEGMENT
#2
LEAK
CONTROL
COOLING
WATER IN
L, P2
H, P2
L, P2
H, P2
BEARING
SEGMENT #1 & #2
LUBE PUMP
MILL NO.3 FIXED BEARING
H, P2
BEARING
SEGMENT
#4
HH, P1
P2
BEARING
SEGMENT
#3
L, P2
LL, P2
L, P2
H, P2
H, P2
C2-3320-HX-770/771/772
C2-3320-HX-770/771/772
C2-3320-HX-770/771/772
C2-3320-ML-301
V
AG
KM
LT
ISSUED FOR CLIENT REVIEW
23-Dec-11
B
RP
ISSUED FOR COMBINED REVIEW
19-Jul-11
A
12/23/2011
K. MUNDY
A. GUNSON
W. BIE
L. TAMELIN
12/23/2011
10:24:48
AM
WBS: 3320
B
PIPING AND INSTRUMENTATION DIAGRAM
BALL MILL CIRCUITS
3300-25J-034
BALL MILL NO. 3 ANCILLARIES
3320-WF-1372-C1A-2"-N
V
3320-WF-1364-C1A-2"-N
3320-WF-1370-C1A-4"-N
V
3320-WF-1365-C1A-4"-N
3320-WF-1366-C1A-4"-N
3320-WF-1371-C1A-4"-N
3320-WF-1367-C1A-2"-N
V
V
3320-WF-1373-C1A-2"-N
3320-WF-1369-C1A-2"-N
3320-WF-1368-C1A-2"-N
D
4
F
B
A
3
2
1 5 6 8
E
7
C
REV.
APPROVED
CHK.
DES.
REV. DATE REVISION DESCRIPTION
CLIENT
LEAD ENGINEER
SCALE DRAWING NUMBER
CHECK DESIGN CHECK DRAWING
DESIGNED BY DRAWN BY
APPROVAL DATE
APPROVAL DATE
APPROVED
CHK.
DES.
REV. DATE REVISION DESCRIPTION REFERENCE DRAWING No.
1:100
0
1:200
5m
10m
0
5m
10m
15m
20m
1:500
10m
0
20m
30m
40m
50m
1:1000
0
100m
50m
1:20
0
0.5m
1m
1.5m
2m
0
1:25
0.5m
1m
1.5m
1:33
1/3
2.5m
2m
0
1m
2m
3m
0
1:50
1m
2m
3m
4m
5m
CAD FILE NAME: P:0CAD000SPEM**
MODEL UPDATED:
DWG. FILE UPDATED:
MANUAL CHANGES MADE: YES NO YES NO YES NO
PROJECT MANAGER
ENGINEERING MANAGER
AREA PROJECTENGINEER
REFERENCE DRAWINGS
SAFETY SHARE:
APPROVAL DATE
CONTRACT
NO.
SAFETY SHARE :
BA6CVA1.IGR
NOTICE: THIS DRAWING HAS NOT BEEN PUBLISHED AND IS THE SOLE
PROPERTY OF FLUOR AND IS LENT TO THE BORROWER FOR THEIR
CONFIDENTIAL USE ONLY, AND IN CONSIDERATION OF THE LOAN OF THIS
DRAWING, THE BORROWER PROMISES AND AGREES TO RETURN IT UPON
REQUEST AND AGREES THAT IT WILL NOT BE REPRODUCED, COPIED LENT
OR OTHERWISE DISPOSED OF DIRECTLY OR INDIRECTLY, NOR USED FOR
ANY OTHER PURPOSE OTHER THAN WHICH IT IS FURNISHED.
NONE
Apr 2011
240K-C2-
P.O NO.:
VENDOR DWG NO.:
VENDOR:
P.O NO.:
VENDOR DWG NO.:
VENDOR:
3330
03512
DIT
3330
03502
DX
3330
03501
AIT
3330
03532
FAH
3330
03532
XL
3330
03512
DX
3330
03501
AE
3330
03511
AE
PH
3330
03502
DIT
3330
03502
DIC
3330
03512
DIC
3330
03511
AIC
3330
03502
DE
3330
03512
DE
3330
03532
FSH
3330
03511
AIT
3330
03501
AIC
2-3320-LA-330
LIME CONTROL VALVE,
3320-AV-03301
1502
3300-25J-033
SAFETY SCREEN DUMP
PRIMARY CYCLONE U/F
LAUNDER, C2-3320-LA-430
1512
3300-25J-037
CYCLONE O/F SAMPLE
ROUGHER CELL NO.1 ROW
NO.4, C2-3410-CF-401
1105 3400-25J-006
2-3320-LA-430
LIME CONTROL VALVE,
3320-AV-03701
1515
3300-25J-037
SAFETY SCREEN DUMP
PRIMARY CYCLONE U/F
LAUNDER, C2-3330-LA-330
1493
3300-25J-033
PRIMARY CYCLONE O/F
ROUGHER CELL NO.1 ROW
NO.3, C2-3410-CF-301
1103 3400-25J-006
CYCLONE O/F SAMPLE
ROUGHER CELL NO.1 ROW
NO.3, C2-3410-CF-301
1104 3400-25J-006
PRIMARY CYCLONE O/F
PRIMARY CYCLONE O/F
LAUNDER, C2-3320-LA-407
1525 3300-25J-037
FLOW CONTROL,
3320-FIC-03702
1520 3300-25J-037
PRIMARY CYCLONE O/F
ROUGHER CELL NO.1 ROW
NO.4, C2-3410-CF-401
1106 3400-25J-006
PRIMARY CYCLONE O/F
PRIMARY CYCLONE O/F
LAUNDER, C2-3320-LA-307
1498 3300-25J-033
FRESH WATER
3260 3300-25J-036
DOMESTIC WATER
2152 5400-25J-022
FLOW CONTROL,
3320-FIC-03320
1503 3300-25J-033
FRESH WATER
2153 3300-25J-032
VENDOR DWG
3300-25J-
VENDOR DWG
3300-25J-
SHIFT SAMPLE
PH
3% SLOPE
SHIFT SAMPLE
3% SLOPE
C2-3330-AZ-302
C2-3330-AZ-301
3330-WF-1173-C1A-1-1/2"-N
C2-3330-ES-502
AG
KM
LT
ISSUED FOR CLIENT REVIEW
23-Dec-11
B
RP
ISSUED FOR COMBINED REVIEW
29-Jun-11
A
12/23/2011
K. MUNDY
A. GUNSON
W. BIE
L. TAMELIN
12/22/2011
4:07:53
PM
WBS: 3330
B
PIPING AND INSTRUMENTATION DIAGRAM
BALL MILL CLASSIFICATION
3300-25J-035
MILLS NO. 3 & 4 SAMPLING
C2-3330-SA-401
C2-3330-SC-405
C2-3330-SA-301
1-1/2"x1/2"
C2-3330-ST-703
C2-3330-SC-305
V
C2-3330-ST-704
3330
03532
XA
+
V
V
V
3330-SL-1084-R1B-48"-N
1-1/2"x1/2"
ES
SIZE:
C2-3330-SA-401
BALL MILL NO.4 CYCLONE O/F SAMPLER
AI
SIZE:
C2-3330-ST-704
BALL MILL NO.4 O/F SAMPLER DISCH. CHUTE
SIZE:
C2-3330-SA-301
BALL MILL NO.3 CYCLONE O/F SAMPLER
3330-SL-1051-R1A-4"-N
3330-SL-1055-R1B-48"-N
SIZE:
C2-3330-AZ-302
GRINDING LINES NO.3 & NO.4 O/F INSTREAM ANALYZER
SIZE:
C2-3330-AZ-301
GRINDING LINES NO.3 & NO.4 O/F PARTICLE SIZE ANALYZER
3330-SL-1052-R1A-4"-N
3330-SL-1053-C1B-4"-N
SIZE:
C2-3330-ST-703
BALL MILL NO.3 O/F SAMPLER DISCH. CHUTE
SIZE:
C2-3330-SC-405
FLOTATION SAFETY SCREEN NO.4
3330-SL-1049-R1A-4"-N
AI
3330-SL-1054-C1B-4"-N
SIZE:
C2-3330-ES-502
CYCLONE AREA SAFETY EYE WASH NO.2
ES
3330-WF-1374-C1A-1-1/2"-N
SIZE:
C2-3330-SC-305
FLOTATION SAFETY SCREEN NO.3
ES
3330-SL-1050-R1A-4"-N
D
4
F
B
A
3
2
1 5 6 8
E
7
C
REV.
APPROVED
CHK.
DES.
REV. DATE REVISION DESCRIPTION
CLIENT
LEAD ENGINEER
SCALE DRAWING NUMBER
CHECK DESIGN CHECK DRAWING
DESIGNED BY DRAWN BY
APPROVAL DATE
APPROVAL DATE
APPROVED
CHK.
DES.
REV. DATE REVISION DESCRIPTION REFERENCE DRAWING No.
1:100
0
1:200
5m
10m
0
5m
10m
15m
20m
1:500
10m
0
20m
30m
40m
50m
1:1000
0
100m
50m
1:20
0
0.5m
1m
1.5m
2m
0
1:25
0.5m
1m
1.5m
1:33
1/3
2.5m
2m
0
1m
2m
3m
0
1:50
1m
2m
3m
4m
5m
CAD FILE NAME: P:0CAD000SPEM**
MODEL UPDATED:
DWG. FILE UPDATED:
MANUAL CHANGES MADE: YES NO YES NO YES NO
PROJECT MANAGER
ENGINEERING MANAGER
AREA PROJECTENGINEER
REFERENCE DRAWINGS
SAFETY SHARE:
APPROVAL DATE
CONTRACT
NO.
SAFETY SHARE :
BA6CVA1.IGR
NOTICE: THIS DRAWING HAS NOT BEEN PUBLISHED AND IS THE SOLE
PROPERTY OF FLUOR AND IS LENT TO THE BORROWER FOR THEIR
CONFIDENTIAL USE ONLY, AND IN CONSIDERATION OF THE LOAN OF THIS
DRAWING, THE BORROWER PROMISES AND AGREES TO RETURN IT UPON
REQUEST AND AGREES THAT IT WILL NOT BE REPRODUCED, COPIED LENT
OR OTHERWISE DISPOSED OF DIRECTLY OR INDIRECTLY, NOR USED FOR
ANY OTHER PURPOSE OTHER THAN WHICH IT IS FURNISHED.
NONE
Apr 2011
240K-C2-
ES
3330
33502
XV
+
FI
3330
33502
XA
MISMATCH
V
M
3330
33502
HS
3330
33502
ZS
ES
V3
3330
33501
XV
+
FI
3330
33501
XA
MISMATCH
V
M
3330
33501
HS
3330
33501
ZS
ES
V3
3320-SL-1047-R1B-48"-N
3330-SL-1057-R1A-40"-N
3330-WF-1114-C1A-4"-N
3320-SL-33501-R1A-40"-N
3320-SL-1064-R1B-48"-N
3330-WF-1027-G1A-1-1/2"-N
T3
3310
03605
ZS
3310
03604
ZS
3310
03604
XA
3310
03605
XA
3310
03603
PIT
3310
AP
3310
03602
LT
3310
03603
FIT
3310
03681 H
TI
3310
03601
FI
3310
03606
PI
3310
03601
DIT
3310
03681
XA
3310
03602
LE
3310
03601
DE
3310
03603
FI
L, P2
LL, P1
3310
03601
DX
3310
03681 H
TE
3310
03608
XA
3310
AP
M
3310
03601
DI
3310
03607
PI
3310
03603
PI
L, P1
3310
03608
ZS
3310
03601
WI
M
3310
03601
FIT
3310
03602
LIC
3310
03601
WY
M
3310
03681 G
TE
3310
03681
II
3310
03681
HS
J/SP
3310
03602
LI
3310
03608 B
HS
OP/CL
L/R
3310
03681 G
TI
BRG
FRONT
H, P2
HH,P1
GLAND SEAL WATER
2947
3900-25J-023
FRESH WATER
3267 3300-25J-042
PROCESS WATER
1658 3900-25J-014
BALL MILL SCREEN U/S
BALL MILL FEED SCREEN,
C2-3310-SC-410
1652 3300-25J-012
BALL MILL SCREEN U/S
BALL MILL FEED SCREEN,
C2-3310-SC-402
1653 3300-25J-012
PRIMARY CYCLONE FEED
PRIMARY CYCLONE,
C2-3330-CS-401
1662 3300-25J-037
BALL MILL NO.1 DISCHARGE
BALL MILL NO.1 DISCHARGE
LAUNDER, C2-3320-LA-401
1650 3300-25J-037
FRESH WATER
3260 3300-25J-035
PROCESS WATER
1657 3900-25J-014
OP/CL
MISMATCH
MISMATCH
NOTE 3
NOTES:
1. DRAIN SEQUENCE WILL OPEN THE DRAIN VALVE AFTER A SET
PERIOD OF INACTIVITY.
2. WILL OPERATE IN ACCORDANCE WITH THE DRAIN PROCEDURE
AS DESCRIBED IN THE CONTROL PHILOSOPHY.
3. DIRECT DRAIN LINES TOWARDS AREA SPILLAGE PUMP.
4. IN ADDITION TO THE STANDARD MAINTENANCE DATA,
THIS WILL ALSO CAPTURE THE PUMP LIFE VS THE MASS FLOW
TROUGH THE PUMP.
5. DELETED
6. CYCLONE FEED PUMP FLOW SWITCHES, PRESSURE SWITCHES
AND ISOLATION VALVES TO BE LOCATED ON THE OPERATING LEVEL.
7. SPACE PROVIDED FOR MANUAL SAMPLING.
FAULT
NOTE 2
AFD
MISMATCH
MIN
NOTE 7
NOTE 2
MIN
OP/CL
NOTE 3
BRG
REAR
H, P2
HH,P1
(LAUNDER)
MASS FLOW
H, P2
L, P2
OP/CL
MIN
FI
3310
03608
XV
+
1-1/2"
AG
KM
LT
ISSUED FOR CLIENT REVIEW
23-Dec-11
B
RP
ISSUED FOR COMBINED REVIEW
29-Jun-11
A
12/23/2011
K. MUNDY
A. GUNSON
W. BIE
L. TAMELIN
12/23/2011
10:26:57
AM
WBS: 3310
B
PIPING AND INSTRUMENTATION DIAGRAM
BALL MILL FEED
3300-25J-036
PRIMARY CYCLONE FEED SUMP NO. 4
C2-3310-PP-401
1-1/2"
3310
03605
XV
+
3310
03604
XV
+
3"x2"
54"x36"
TO FLOOR
2"x1-1/4"
TO FLOOR
3310
03601
FE
+
36"
3"x2"
3310
03603
FE
+
C2-3310-BX-401
FI
3310-WR-1129-C1A-8"-N
3310-SL-1059-R1B-54"-N
ES
3310-WR-1083-C1A-8"-N
ES
3310-WG-1023-C1A-2"-N
3310-WF-1375-C1A-1-1/2"-N
ES
ES
3310-WR-1489-C1A-8"-N
3310-SL-1062-R1B-48"-N
SIZE:
MATERIAL:
MOTOR:
C2-3310-PP-401
PRIMARY CYCLONE FEED PUMP NO.4 (AFD)
SIZE:
MATERIAL:
CAPACITY:290.0 m^3
TRIM:3310-SL-1060-C1B
C2-3310-BX-401
BALL MILL CYCLONE FEED SUMP
3310-WF-1111-C1A-1"-N
3310-WF-1487-C1A-8"-N
3310-WF-1114-C1A-4"-N
D
4
F
B
A
3
2
1 5 6 8
E
7
C
REV.
APPROVED
CHK.
DES.
REV. DATE REVISION DESCRIPTION
CLIENT
LEAD ENGINEER
SCALE DRAWING NUMBER
CHECK DESIGN CHECK DRAWING
DESIGNED BY DRAWN BY
APPROVAL DATE
APPROVAL DATE
APPROVED
CHK.
DES.
REV. DATE REVISION DESCRIPTION REFERENCE DRAWING No.
1:100
0
1:200
5m
10m
0
5m
10m
15m
20m
1:500
10m
0
20m
30m
40m
50m
1:1000
0
100m
50m
1:20
0
0.5m
1m
1.5m
2m
0
1:25
0.5m
1m
1.5m
1:33
1/3
2.5m
2m
0
1m
2m
3m
0
1:50
1m
2m
3m
4m
5m
CAD FILE NAME: P:0CAD000SPEM**
MODEL UPDATED:
DWG. FILE UPDATED:
MANUAL CHANGES MADE: YES NO YES NO YES NO
PROJECT MANAGER
ENGINEERING MANAGER
AREA PROJECTENGINEER
REFERENCE DRAWINGS
SAFETY SHARE:
APPROVAL DATE
CONTRACT
NO.
SAFETY SHARE :
BA6CVA1.IGR
NOTICE: THIS DRAWING HAS NOT BEEN PUBLISHED AND IS THE SOLE
PROPERTY OF FLUOR AND IS LENT TO THE BORROWER FOR THEIR
CONFIDENTIAL USE ONLY, AND IN CONSIDERATION OF THE LOAN OF THIS
DRAWING, THE BORROWER PROMISES AND AGREES TO RETURN IT UPON
REQUEST AND AGREES THAT IT WILL NOT BE REPRODUCED, COPIED LENT
OR OTHERWISE DISPOSED OF DIRECTLY OR INDIRECTLY, NOR USED FOR
ANY OTHER PURPOSE OTHER THAN WHICH IT IS FURNISHED.
NONE
Apr 2011
240K-C2-
V V
FI
CRUSH. PLANT EFFLUENT
BALL MILL CYCLONE FEED
SUMP NO.1, C2-3310-BX-101
3523
3300-25J-022
CRUSH. PLANT EFFLUENT
BALL MILL CYCLONE FEED
SUMP NO.2, C2-3310-BX-201
3524
3300-25J-026
CRUSH. PLANT EFFLUENT
BALL MILL CYCLONE FEED
SUMP NO.3, C2-3310-BX-301
3525
3300-25J-032
CRUSH. PLANT EFFLUENT
BALL MILL CYCLONE FEED
SUMP NO.5, C2-3310-BX-501
3526
3300-25J-042
CRUSH. PLANT EFFLUENT
BALL MILL CYCLONE FEED
SUMP NO.6, C2-3310-BX-601
3527
3300-25J-046
C2-3240-PP-023/024
3310
03609
XA
3310
03609
XV
+
OP/CL
MISMATCH
V1
FI
3310
03609
ZS
3310-SL-1805-C1B-4"-N
3310
03611
XA
3310
03611
XV
+
OP/CL
MISMATCH
V1
FI
3310
03611
ZS
3310
03612
XA
3310
03612
XV
+
OP/CL
MISMATCH
V1
FI
3310
03612
ZS
3310
03613
XA
3310
03613
XV
+
OP/CL
MISMATCH
V1
FI
3310
03613
ZS
3310
03614
XA
3310
03614
XV
+
OP/CL
MISMATCH
V1
FI
3310
03614
ZS
3310
03610
XA
3310
03610
XV
+
OP/CL
MISMATCH
V1
FI
3310
03610
ZS
ES
3310-SL-1005-C1B-10"-N
3310-SL-1802-C1B-4"-N
3310-SL-1803-C1B-4"-N
3310-SL-1804-C1B-4"-N
3310-SL-1806-C1B-4"-N
3310-SL-1807-C1B-4"-N
C.O. SCREEN AREA SUMP
COARSE SCREENING
EFFLUENT PUMPS,
3250 3200-25J-019
CONTENTS
C2-3300-HX-770/771/772
FRESH WATER
GRINDING AREA HEAT
EXCHANGERS,
3712 3300-25J-054
D
4
F
B
A
3
2
1 5 6 8
E
7
C
REV.
APPROVED
CHK.
DES.
REV. DATE REVISION DESCRIPTION
CLIENT
LEAD ENGINEER
SCALE DRAWING NUMBER
CHECK DESIGN CHECK DRAWING
DESIGNED BY DRAWN BY
APPROVAL DATE
APPROVAL DATE
APPROVED
CHK.
DES.
REV. DATE REVISION DESCRIPTION REFERENCE DRAWING No.
1:100
0
1:200
5m
10m
0
5m
10m
15m
20m
1:500
10m
0
20m
30m
40m
50m
1:1000
0
100m
50m
1:20
0
0.5m
1m
1.5m
2m
0
1:25
0.5m
1m
1.5m
1:33
1/3
2.5m
2m
0
1m
2m
3m
0
1:50
1m
2m
3m
4m
5m
CAD FILE NAME: P:0CAD000SPEM**
MODEL UPDATED:
DWG. FILE UPDATED:
MANUAL CHANGES MADE: YES NO YES NO YES NO
PROJECT MANAGER
ENGINEERING MANAGER
AREA PROJECTENGINEER
REFERENCE DRAWINGS
SAFETY SHARE:
APPROVAL DATE
CONTRACT
NO.
SAFETY SHARE :
BA6CVA1.IGR
NOTICE: THIS DRAWING HAS NOT BEEN PUBLISHED AND IS THE SOLE
PROPERTY OF FLUOR AND IS LENT TO THE BORROWER FOR THEIR
CONFIDENTIAL USE ONLY, AND IN CONSIDERATION OF THE LOAN OF THIS
DRAWING, THE BORROWER PROMISES AND AGREES TO RETURN IT UPON
REQUEST AND AGREES THAT IT WILL NOT BE REPRODUCED, COPIED LENT
OR OTHERWISE DISPOSED OF DIRECTLY OR INDIRECTLY, NOR USED FOR
ANY OTHER PURPOSE OTHER THAN WHICH IT IS FURNISHED.
NONE
Apr 2011
240K-C2-
3320
03702
FV
+
3320
03705
PIC
VENDOR
DWG NO
3300-25J-337
NOTE 2
10"
H, P2
L, P2
3320
03703
FIT
C2-3330-ST-430
16"x10"
C2-3320-SC-407
EMERGENCY BALLS
FROM BALL BUCKET M
3320
03702
FE
+
3320
33701
XV
+
3320
03711
XA
+
NOTE 2
M
C2-3330-CS-401
3320
03704
FV
+
16"x14"
3320
03703
FIC
3320
03702
FIT
C2-3320-ST-490
16"x10"
3320
03703
FV
+
3320
03781
XA
NOTES:
1. MILL CAPACITY IS BASED ON NEW FEED.
2. SPACE PROVIDED FOR MANUAL SAMPLING
3. HORN FOR START UP.
3320
03701
AV
+
NOTE 1
3320
03781
HS
FAULT
6"
C2-3320-LA-401
C2-3330-LA-430
C2-3320-ML-401
3320
03702
FIC
3320
03704
FIT
LAUNDER
3320
03703
FE
+
3320
03781
II
3320
03704
FIC
TOTE BIN
16"x14"
3320
03704
FE
+
M
1-1/2"x1/2"
SIZE:
C2-3320-SC-407
BAL MILL NO.4 DISCH. TRAMP GRIZZLY
NOTE 2
C2-3330-LA-407
C2-3320-ST-409
14"
SAMPLE POINT
C2-3330-ST-420
3320
03705
PIT
SECONDARY COLLECTOR
INJECTOR, C2-3910-ZM-619
1507 3900-25J-002
PRIMARY COLLECTOR
INJECTOR, C2-3910-ZM-593
1508 3900-25J-001
MO COLLECTOR
INJECTOR, C2-3910-ZM-585
1509 3900-25J-003
MILK OF LIME
LIME DISTRIBUTOR PUMPS,
C2-3920-PP-093/094
1510 3900-25J-012
TEST REAGENT
INJECTOR, C2-3910-ZM-696
1511 3900-25J-004
SAMPLER SAFETY SCREEN
FLOTATION SAFETY SCREEN,
C2-3330-SC-405
1512 3300-25J-035
GRINDING BALLS
BALL MILL TRANSFER
CONVEYOR, C2-3320-CV-034
1513 3300-25J-053
PRIMARY CYCLONE FEED
PRIMARY CYCLONE FEED
PUMP C2-3310-PP-401
1514 3300-25J-036
IN-LINE ANALYZER
PH-CONTROL,
1515 3300-25J-035
DENSITY CONTROL,
3330-DIC-03512
1520
3300-25J-035
FROTHER GLYCOL
INJECTOR, C2-3910-ZM-674
1521
3900-25J-005
PROCESS WATER
1522
3900-25J-014
PROCESS WATER
1523
3900-25J-014
PROCESS WATER
1524
3900-25J-014
PRIMARY CYCLONE O/F
BALL MILL NO.4 CYCLONE O/F
SAMPLER, C2-3330-SA-401
1525 3300-25J-035
T4
3320-WR-1131-C1A-16"-N
SIZE:16 x 840 mm
C2-3330-CS-401
PRIMARY CYCLONE CLUSTER
3320-WR-1490-C1A-2"-N
3320-RF-1015-C1D-1"-N
3320-RC-1098-C1D-1"-N
SIZE:
C2-3320-ST-490
BALL MILL NO. 4 TRAMP CHUTE
SIZE:
C2-3330-LA-407
PRIMARY CYCLONE O/F LAUNDER
3320-WR-1131-C1A-16"-N
3320-WR-1127-C1A-16"-N
3330-SL-1063-R1A-6"-N
3320-WR-1130-C1A-16"-N
3330-SL-1064-R1B-16"-N
3320-RL-1025-C1B-2"-N
3320-RL-1011-C1B-2"-N
SIZE:
C2-3330-ST-420
BALL MILL NO. 4 FEED CHUTE
SIZE:
C2-3330-ST-430
CYCLONE U/F LAUNDER DISCHARGE BOX
3330-SL-1065-R1B-48"-N
SIZE:
C2-3320-ST-409
BALL MILL NO.4 HOOD & CHUTE
3320-RC-1135-C1D-1"-N
SIZE:
C2-3330-LA-430
CYCLONE U/F LAUNDER
3310-SL-1062-R1A-48"-N
SIZE:
C2-3320-LA-401
BALL MILL NO. 4 DISCH. LAUNDER
3320-WR-1491-C1A-1-1/2"-N
3320-RC-1017-C1D-1"-N
3320-RC-1052-C1D-1"-N
AG
KM
LT
ISSUED FOR CLIENT REVIEW
23-Dec-11
B
RP
ISSUED FOR COMBINED REVIEW
29-Jun-11
A
12/23/2011
K. MUNDY
A. GUNSON
W. BIE
L. TAMELIN
12/22/2011
4:13:20
PM
WBS: 3320
B
PIPING AND INSTRUMENTATION DIAGRAM
BALL MILL CIRCUITS
3300-25J-037
BALL MILL NO. 4
RSP
3320
03701
ZS
OP/CL
NOTE 3
SIZE: 8.2 m D x 14.6 m EGL
MOTOR: 22000.00 kW
C2-3320-ML-401
BALL MILL NO. 4
C2-3320-ZM-035
SIZE:
C2-3320-ZM-035
BOLT REMOVAL TOOL NO.1
3320
33701
XA
MISMATCH
A-R
3320
33701
ZS
OP/CL
A-R
A-R (QTY 16)
BALL MILL DISCHARGE
PRIMARY CYCLONE FEED
SUMP, C2-3310-BX-401
1650 3300-25J-036
ES
FC
ES
FC
ES
FC
V
V
FI
FC
3330-AIC-03511
3330-SL-1056-R1A-40"-N
3320
33702
PI
V
FRESH WATER
3320-LV-02307
4126 3300-25J-023
3320-WF- -C1A-10"-N
M
3320-FQI-02306
4208
3300-25J-023
3320
03706
FIT
3320
03706
FE
+
D
4
F
B
A
3
2
1 5 6 8
E
7
C
REV.
APPROVED
CHK.
DES.
REV. DATE REVISION DESCRIPTION
CLIENT
LEAD ENGINEER
SCALE DRAWING NUMBER
CHECK DESIGN CHECK DRAWING
DESIGNED BY DRAWN BY
APPROVAL DATE
APPROVAL DATE
APPROVED
CHK.
DES.
REV. DATE REVISION DESCRIPTION REFERENCE DRAWING No.
1:100
0
1:200
5m
10m
0
5m
10m
15m
20m
1:500
10m
0
20m
30m
40m
50m
1:1000
0
100m
50m
1:20
0
0.5m
1m
1.5m
2m
0
1:25
0.5m
1m
1.5m
1:33
1/3
2.5m
2m
0
1m
2m
3m
0
1:50
1m
2m
3m
4m
5m
CAD FILE NAME: P:0CAD000SPEM**
MODEL UPDATED:
DWG. FILE UPDATED:
MANUAL CHANGES MADE: YES NO YES NO YES NO
PROJECT MANAGER
ENGINEERING MANAGER
AREA PROJECTENGINEER
REFERENCE DRAWINGS
SAFETY SHARE:
APPROVAL DATE
CONTRACT
NO.
SAFETY SHARE :
BA6CVA1.IGR
NOTICE: THIS DRAWING HAS NOT BEEN PUBLISHED AND IS THE SOLE
PROPERTY OF FLUOR AND IS LENT TO THE BORROWER FOR THEIR
CONFIDENTIAL USE ONLY, AND IN CONSIDERATION OF THE LOAN OF THIS
DRAWING, THE BORROWER PROMISES AND AGREES TO RETURN IT UPON
REQUEST AND AGREES THAT IT WILL NOT BE REPRODUCED, COPIED LENT
OR OTHERWISE DISPOSED OF DIRECTLY OR INDIRECTLY, NOR USED FOR
ANY OTHER PURPOSE OTHER THAN WHICH IT IS FURNISHED.
NONE
Apr 2011
240K-C2-
AG
KM
LT
ISSUED FOR CLIENT REVIEW
23-Dec-11
B
RP
ISSUED FOR COMBINED REVIEW
19-Jul-11
A
12/23/2011
K. MUNDY
A. GUNSON
W. BIE
L. TAMELIN
12/23/2011
10:28:47
AM
WBS: 3320
B
PIPING AND INSTRUMENTATION DIAGRAM
BALL MILL CIRCUITS
3300-25J-041
BALL MILL NO. 4 ANCILLARIES
3320
34812
TI
3320
34516
PAL
BEARING
SEGMENT
#4
3320
34802
TI
H, P2
BEARING
SEGMENT
#3
THRUST
BEARING
LUBE PUMP
(STAND-BY)
3320
34821
PI
3320
34515
PI
L, P2
H, P2
THRUST
BEARING
LUBE PUMP
3320
34831
PI
3320
34507
FAL
BEARING
SEGMENT
#1
CIRCULATING
PUMP
(STAND-BY)
3320
34603
XA
3320
36523
LA
L, P2
H, P2
CIRCULATING
PUMP
3320
34811
PI
LOW PRESSURE
STAND-BY
PUMP CONTROL
BEARING
SEGMENT
#2
ACCUMULATOR
PUMP
(STAND-BY)
3320
34801
PI
3320
36508
PAL
L, P2
H, P2
ACCUMULATOR
PUMP
P.O NO.:
VENDOR DWG NO.:
VENDOR:
3320
04102
TE
H, P2
CIRCULATING
PUMP
BEARING
SEGMENT #3 & #4
LUBE PUMP
(STAND BY)
3320
04102
TI
3320
36522
PDI
BEARING SEGMENT #3 & #4
STAND-BY PUMP CONTROL
BEARING
SEGMENT #3 & #4
LUBE PUMP
3320
04101
TI
3320
36518
PAL
ACCUMULATOR #2
BEARING
SEGMENT #1 & #2
LUBE PUMP
(STAND BY)
3320
03101
TE
3320
36521
FAL
ACCUMULATOR #1
BEARING
SEGMENT #1 & #2
LUBE PUMP
3320
04104
TE
3320
36519
PAL
P2
CIRCULATING
PUMP
(STAND-BY)
3320
04104
TI
3320
36523
TI
P2
CIRCULATING
PUMP
3320
04105
FAL
ACCUMULATOR
#2
P2
ACCUMULATOR
PUMP
(STAND-BY)
3320
04105
FISL
ACCUMULATOR
PUMP CONTROL
ACCUMULATOR
PUMP CONTROL
BEARING
SEGMENT #3 & #4
LUBE PUMP
(STAND BY)
3320
04103
TI
3320
36509
PAL
BEARING SEGMENT #1 & #2
STAND-BY PUMP CONTROL
BEARING
SEGMENT #3 & #4
LUBE PUMP
3320
04103
TE
3320
36516
PAL
OIL TANK
BEARING
SEGMENT #1 & #2
LUBE PUMP
(STAND BY)
LUBE TANK
OIL
3320
36517
PI
P2
BEARING
SEGMENT #1 & #2
LUBE PUMP
AIR GAP
SENSORS
A-H, J
3320
36507
PI
LUBE OIL
FILTER
CYCLOCONVERTER
COOLING WATER
PUMP
(STAND BY)
H, P2
3320
36520
PI
HH, P2
CYCLOCONVERTER
COOLING WATER
PUMP
H, P2
P2
P2
FAN #2
RIGHT
3320
36506
PAL
OIL
TANK
FAN #2
LEFT
ACCUMULATOR
PUMP
H, P2
CIRCULATING
STAND-BY
PUMP CONTROL
FAN #1
RIGHT
CIRCULATING STAND-BY
PUMP CONTROL
CIRCULATING
OIL
FAN #1
LEFT
COMMON
ALARM
3320
34506
PDI
LOW PRESSURE
OIL
OVERPRESSURE
FAN RIGHT
P2
LUBE OIL
FILTER
OVERPRESSURE
FAN LEFT
LUBE
TANK OIL
P2
MILL NO. 4 CYCLOCONVERTER CONTROL
3320
34520
XA
COMMON
ALARM
LEAK
CONTROL
H, P2
P2
MILL NO.4 MOTOR CONTROL
3320
36525
XA
P2
P2
MILL NO. 4 FLOATING BEARING
3320
34510
PAL
P2
MILL NO.4 FIXED BEARING
3320
34509
TI
H, P2
MILL NO.4 FLOATING BEARING LUBE UNIT
CIRCULATING
OIL
L, P2
MILL NO.4 FIXED BEARING LUBE UNIT
3320
34508
LALL
P2
BEARING
SEGMENT
#1
3320
34505
PAL
P2
BEARING
SEGMENT
#2
P2
CIRCULATING
PUMP
BEARING
SEGMENT
#3
3320
36415
LAH
L, P2
H, P2
BEARING
SEGMENT
#1
3320-WF-1384-C1A-2"-N
A, B
L, P2
H, P2
LL, P2
BEARING
SEGMENT
#2
3320-WF-1381-C1A-2"-N
3320
36414
MI
BEARING SEGMENT #1 & #2
STAND-BY PUMP CONTROL
BEARING
SEGMENT
#3
3320-WF-1383-C1A-4"-N
3320
36604
TI
MILL BRAKE CONTROLS
THRUST
BEARING
SEGMENT
#1
3320-WF-1382-C1A-4"-N
3320
36603
FI
P2
THRUST
BEARING
SEGMENT
#2
3320
36602
LAH
CIRCULATING
WATER
THRUST
BEARING
SEGMENT
#3
3320
36734
TI
COOLING
WATER
PUMPS
BEARING
SEGMENT
#4
3320
36724
TI
EXPANSION
TANK
BEARING
SEGMENT
#4
3320
36714
TI
ACCUMULATOR
#1
THRUST
BEARING
SEGMENT
#4
3320
36704
TI
BEARING SEGMENT #3 & #4
STAND-BY PUMP CONTROL
L, P2
H, P2
3320
36733
TI
3320
34611
XA
L, P2
H, P2
3320
36723
TI
3320
34601
XA
L, P2
H, P2
3320
36713
TI
3320
34501
XA
L, P2
H, P2
3320
36703
TI
3320
34511
XA
L, P2
H, P2
3320
36610
TI
3320
34502
XA
L, P2
H, P2
3320
36609
TI
3320
34512
XA
L, P2
H, P2
COMMON
ALARM
3320
36608
CI
3320
34503
XA
L, P2
H, P2
3320
36410
XA
3320
36607
PI
3320
34513
XA
L, P2
H, P2
3320
36606
LI
3320
34514
XA
H, P2
3320
36605
TI
3320
34504
XA
H, P2
3320
36732
PI
3320
36515
XA
H, P2
3320
36722
PI
3320
36505
XA
H, P2
3320
36712
PI
3320
36514
XA
WATER LEAK
SENSOR LEFT
3320
36702
PI
3320
36503
XA
COOLING AIR
DISCHARGE
A-B
BEARING
SEGMENT
#1
3320
36512
XA
COOLING
AIR INTAKE
A-B
3320
36701
SI
3320
36502
XA
SEALING
SYSTEM WEAR
A-B
BEARING
SEGMENT
#2
3320
36504
XA
STATOR
WINDING
A-F
3320
36711
SI
3320
36513
XA
COOLING
WATER IN
BEARING
SEGMENT
#4
3320
36511
XA
COOLING
WATER
3320
36731
SI
3320
36501
XA
H, P2
HH, P2
COMMON
ALARM
BEARING
SEGMENT
#3
3320
36611
XA
L, P2
LL, P2
3320
36610
XA
3320
36721
SI
3320
36601
XA
WATER LEAK
SENSOR RIGHT
3320
34614
LALL
3320
36413
XA
COOLANT
FROM HEAT
EXCHANGER
3320
34615
TA
3320
36412
XA
COOLANT
TO HEAT
EXCHANGER
V
3320
34614
LAL
3320
36411
XA
H, P2
HH, P2
V
3320
34616
PDAH
3320
36403
XA
L, P2
V
3320
34617
ZL
3320
36402
XA
L, P2
LL, P2
V
3320
34607
ZL
3320
36401
XA
COOLING
WATER
OUT
V
3320
34606
PDAH
3320
36404
TI
H, P2
HH, P2
3320
34605
TA
P.O NO.:
VENDOR DWG NO.:
VENDOR:
3320
36405
TI
H, P2
HH, P2
3320
34604
LALL
3320
36406
TI
BEARING
SEGMENT
#4
P.O NO.:
VENDOR DWG NO.:
VENDOR:
3320
34604
LAL
P2
BEARING
SEGMENT
#3
3320
34832
TI
3320
36407
LAH
BEARING
SEGMENT
#4
P.O NO.:
VENDOR DWG NO.:
VENDOR:
3320
34822
TI
3320
36408
XA
BEARING
SEGMENT
#3
3320-WF-1385-C1A-2"-N
3320
34833
SI
3320
36409
ZA
BEARING
SEGMENT
#2
3320-WF-1378-C1A-4"-N
P.O NO.:
VENDOR DWG NO.:
VENDOR:
3320
34823
SI
3320
34519
PAL
BEARING
SEGMENT
#1
3320-WF-1377-C1A-4"-N
3320
34813
SI
L,P2
LL, P2
BEARING
SEGMENT
#1
3320-WF-1376-C1A-2"-N
COMMON
ALARM
COMMON
ALARM
P.O NO.:
VENDOR DWG NO.:
VENDOR:
3320
34803
SI
3320
34518
PAL
BEARING
SEGMENT
#2
3320-WF-1380-C1A-2"-N
3320
34810
XA
3320
36710
XA
H, P2
HH, P2
3320
34517
PAL
L, P2
H, P2
3320-WF-1379-C1A-2"-N
P.O NO.:
VENDOR DWG NO.:
VENDOR:
L, P2
H, P2
L, P2
H, P2
L, P2
H, P2
L, P2
H, P2
HH, P1
C2-3320-ML-401
CLOSED LOOP CWS
GRINDING AREA HEAT
EXCHANGERS,
3884 3300-25J-057
CLOSED LOOP CWS
GRINDING AREA HEAT
EXCHANGERS,
3882 3300-25J-057
CLOSED LOOP CWS
GRINDING AREA HEAT
EXCHANGERS,
3883 3300-25J-057
CLOSED LOOP CWS
GRINDING AREA HEAT
EXCHANGERS,
3880 3300-25J-057
CLOSED LOOP CWS
GRINDING AREA HEAT
EXCHANGERS,
3881 3300-25J-057
C2-3320-HX-770/771/772
C2-3320-HX-770/771/772
C2-3320-HX-770/771/772
C2-3320-HX-770/771/772
C2-3320-HX-770/771/772
CLOSED LOOP CWS
GRINDING COOLING SYSTEM
PUPMS, C2-3320-PP-765/766
3946 3300-25J-056
CLOSED LOOP CWS
GRINDING COOLING SYSTEM
PUPMS, C2-3320-PP-765/766
3945 3300-25J-056
CLOSED LOOP CWS
GRINDING COOLING SYSTEM
PUPMS, C2-3320-PP-765/766
3948 3300-25J-056
CLOSED LOOP CWS
GRINDING COOLING SYSTEM
PUPMS, C2-3320-PP-765/766
3947 3300-25J-056
CLOSED LOOP CWS
GRINDING COOLING SYSTEM
PUPMS, C2-3320-PP-765/766
3949 3300-25J-056
T3
3310
04204
ZS
3310
04205
ZS
3310
04205
XA
MISMATCH
3310
04204
XA
MISMATCH
3310
04201
WI
M
3310
04203
FI
L, P2
LL, P1
3310
04201
DIT
3310
04281
II
J/SP
M
3310
04201
DE
3310
04203
PI
L, P1
3310
04281 H
TI
3310
04203
PIT
3310
04202
LT
3310
AP
3310
04201
FI
3310
04281 G
TI
BRG
FRONT
H, P2
HH,P1
3310
04208
XA
3310
04281 G
TE
3310
AP 3310
04201
DX
3310
04281 H
TE
3310
04281
XA
M
3310
04208 B
HS
OP/CL
L/R
3310
04201
DI
3310
04281
HS
3310
04202
LIC
3310
04202
LI
3310
04203
FIT
3310
04206
PI
3310
04207
PI
3310
04208
ZS
3310
04201
WY
3310
04201
FIT
3310
04202
LE
GLAND SEAL WATER
2948
3900-25J-023
FRESH WATER
3267 3300-25J-036
BALL MILL SCREEN U/S
BALL MILL FEED SCREEN,
C2-3310-SC-502
1687 3300-25J-015
FRESH WATER
2163 3300-25J-045
BALL MILL NO.5 DISCHARGE
BALL MILL NO.5 DISCHARGE
LAUNDER, C2-3320-LA-501
1686 3300-25J-043
PROCESS WATER
1691 3900-25J-014
PROCESS WATER
1685 3900-25J-014
PLANT AIR COMPRESSORS
SPENT COOLING WATER
1689 3900-25J-018
PRIMARY CYCLONE FEED
PRIMARY CYCLONE,
C2-3330-CS-501
1694 3300-25J-043
BALL MILL SCREEN U/S
BALL MILL FEED SCREEN,
C2-3310-SC-501
1688 3300-25J-015
MIN
NOTE 3
MIN
NOTES:
1. DRAIN SEQUENCE WILL OPEN THE DRAIN VALVE AFTER A SET
PERIOD OF INACTIVITY.
2. WILL OPERATE IN ACCORDANCE WITH THE DRAIN PROCEDURE
AS DESCRIBED IN THE CONTROL PHILOSOPHY.
3. DIRECT DRAIN LINES TOWARDS AREA SPILLAGE PUMP.
4. IN ADDITION TO THE STANDARD MAINTENANCE DATA,
THIS WILL ALSO CAPTURE THE PUMP LIFE VS THE MASS FLOW
TROUGH THE PUMP.
5. DELETED
6. CYCLONE FEED PUMP FLOW SWITCHES, PRESSURE SWITCHES
AND ISOLATION VALVES TO BE LOCATED ON THE OPERATING LEVEL.
7. SPACE PROVIDED FOR MANUAL SAMPLING.
AFD
MASS FLOW
NOTE 2
FAULT
H, P2
L, P2
OP/CL
NOTE 3
MISMATCH
(LAUNDER)
MIN
BRG
REAR
H, P2
HH,P1
NOTE 7
NOTE 2
OP/CL
OP/CL
C2-3310-BX-501
TO FLOOR
3310
04201
FE
+
1-1/2"
3310
04205
XV
+
1-1/2"
3"x2"
3310
04203
FE
+
FI
3310
04208
XV
+
2"x1-1/4"
FI
3"x2"
36"
AG
KM
LT
ISSUED FOR CLIENT REVIEW
23-Dec-11
B
RP
ISSUED FOR COMBINED REVIEW
29-Jun-11
A
12/23/2011
K. MUNDY
A. GUNSON
W. BIE
L. TAMELIN
12/23/2011
10:29:44
AM
WBS: 3310
B
PIPING AND INSTRUMENTATION DIAGRAM
BALL MILL FEED
3300-25J-042
PRIMARY CYCLONE FEED SUMP NO. 5
C2-3310-PP-501
TO FLOOR
54"x36"
3310
04204
XV
+
3310-WF-1488-C1A-8"-N
3310-WF-1114-C1A-4"-N
3310-WR-1173-C1A-8"-N
ES
ES
SIZE:
MATERIAL:
CAPACITY:290.0 m^3
TRIM:3310-SL-1066-C1B
C2-3310-BX-501
BALL MILL CYCLONE FEED SUMP
3310-SL-1070-R1B-48"-N
3960-WF-1522-C1A-6"-N
ES
3310-WG-1024-C1A-2"-N
3310-WF-1386-C1A-1-1/2"-N
3310-WR-1140-C1A-8"-N
ES
3310-WR-1492-C1A-8"-N
3310-SL-1069-R1B-54"-N
SIZE:
MATERIAL:
MOTOR:
C2-3310-PP-501
PRIMARY CYCLONE FEED PUMP NO.5 (AFD)
D
4
F
B
A
3
2
1 5 6 8
E
7
C
REV.
APPROVED
CHK.
DES.
REV. DATE REVISION DESCRIPTION
CLIENT
LEAD ENGINEER
SCALE DRAWING NUMBER
CHECK DESIGN CHECK DRAWING
DESIGNED BY DRAWN BY
APPROVAL DATE
APPROVAL DATE
APPROVED
CHK.
DES.
REV. DATE REVISION DESCRIPTION REFERENCE DRAWING No.
1:100
0
1:200
5m
10m
0
5m
10m
15m
20m
1:500
10m
0
20m
30m
40m
50m
1:1000
0
100m
50m
1:20
0
0.5m
1m
1.5m
2m
0
1:25
0.5m
1m
1.5m
1:33
1/3
2.5m
2m
0
1m
2m
3m
0
1:50
1m
2m
3m
4m
5m
CAD FILE NAME: P:0CAD000SPEM**
MODEL UPDATED:
DWG. FILE UPDATED:
MANUAL CHANGES MADE: YES NO YES NO YES NO
PROJECT MANAGER
ENGINEERING MANAGER
AREA PROJECTENGINEER
REFERENCE DRAWINGS
SAFETY SHARE:
APPROVAL DATE
CONTRACT
NO.
SAFETY SHARE :
BA6CVA1.IGR
NOTICE: THIS DRAWING HAS NOT BEEN PUBLISHED AND IS THE SOLE
PROPERTY OF FLUOR AND IS LENT TO THE BORROWER FOR THEIR
CONFIDENTIAL USE ONLY, AND IN CONSIDERATION OF THE LOAN OF THIS
DRAWING, THE BORROWER PROMISES AND AGREES TO RETURN IT UPON
REQUEST AND AGREES THAT IT WILL NOT BE REPRODUCED, COPIED LENT
OR OTHERWISE DISPOSED OF DIRECTLY OR INDIRECTLY, NOR USED FOR
ANY OTHER PURPOSE OTHER THAN WHICH IT IS FURNISHED.
NONE
Apr 2011
240K-C2-
V V
FI
C2-3240-PP-023/024
EFFLUENT 3310-SL-1806-C1B-4"-N
ES
3310-WF-1110-C1A-1"-N
CRUSHING PLANT
COARSE SCREENING
EFFLUENT PUMPS,
3526 3300-25J-036
3310-WF-1114-C1A-4"-N
C2-3300-HX-770/771/772
FRESH WATER
GRINDING AREA HEAT
EXCHANGERS,
3714 3300-25J-054
D
4
F
B
A
3
2
1 5 6 8
E
7
C
REV.
APPROVED
CHK.
DES.
REV. DATE REVISION DESCRIPTION
CLIENT
LEAD ENGINEER
SCALE DRAWING NUMBER
CHECK DESIGN CHECK DRAWING
DESIGNED BY DRAWN BY
APPROVAL DATE
APPROVAL DATE
APPROVED
CHK.
DES.
REV. DATE REVISION DESCRIPTION REFERENCE DRAWING No.
1:100
0
1:200
5m
10m
0
5m
10m
15m
20m
1:500
10m
0
20m
30m
40m
50m
1:1000
0
100m
50m
1:20
0
0.5m
1m
1.5m
2m
0
1:25
0.5m
1m
1.5m
1:33
1/3
2.5m
2m
0
1m
2m
3m
0
1:50
1m
2m
3m
4m
5m
CAD FILE NAME: P:0CAD000SPEM**
MODEL UPDATED:
DWG. FILE UPDATED:
MANUAL CHANGES MADE: YES NO YES NO YES NO
PROJECT MANAGER
ENGINEERING MANAGER
AREA PROJECTENGINEER
REFERENCE DRAWINGS
SAFETY SHARE:
APPROVAL DATE
CONTRACT
NO.
SAFETY SHARE :
BA6CVA1.IGR
NOTICE: THIS DRAWING HAS NOT BEEN PUBLISHED AND IS THE SOLE
PROPERTY OF FLUOR AND IS LENT TO THE BORROWER FOR THEIR
CONFIDENTIAL USE ONLY, AND IN CONSIDERATION OF THE LOAN OF THIS
DRAWING, THE BORROWER PROMISES AND AGREES TO RETURN IT UPON
REQUEST AND AGREES THAT IT WILL NOT BE REPRODUCED, COPIED LENT
OR OTHERWISE DISPOSED OF DIRECTLY OR INDIRECTLY, NOR USED FOR
ANY OTHER PURPOSE OTHER THAN WHICH IT IS FURNISHED.
NONE
Apr 2011
240K-C2-
C2-3320-ST-590
10"
M
3320
04381
II
3320
04305
PIT
3320
04304
FV
+
VENDOR
DWG NO
3300-25J
C2-3320-ML-501
3320
04303
FIT
3320
04381
XA
TOTE BIN
6"
3320
04303
FV
+
16"x14"
FAULT
SIZE:
C2-3320-SC-507
BAL MILL NO. 5 DISCHARGE TRAMP GRIZZLY
NOTE 2
3320
34301
XV
+
NOTES:
1. MILL CAPACITY IS BASED ON NEW FEED.
2. SPACE PROVIDED FOR MANUAL SAMPLING
3. HORN FOR START UP.
NOTE 1
C2-3320-ST-509
3320
04302
FV
+
H, P2
L, P2
C2-3330-LA-507
3320
04302
FIT
16"x14"
3320
04303
FIC
C2-3330-LA-530
16"x10"
1-1/2"x1/2"
C2-3330-CS-501
SAMPLE POINT
LAUNDER
C2-3320-SC-507
3320
04301
AV
+
NOTE 2
EMERGENCY BALLS
FROM BALL BUCKET
M
3320
04311
XA
+
14"
3320
04302
FE
+
3320
04302
FIC
3320
04304
FIC
C2-3320-LA-501
3320
04381
HS
3320
04305
PIC
3320
04304
FE
+
16"x10"
NOTE 2
3320
04303
FE
+
C2-3330-ST-530
C2-3320-ST-520
M
3320
04304
FIT
SECONDARY COLLECTOR
INJECTOR, C2-3910-ZM-620
1533 3900-25J-002
PRIMARY CYCLONE FEED
PRIMARY CYCLONE FEED
PUMP, C2-3310-PP-501
1534 3300-25J-042
PRIMARY COLLECTOR
INJECTOR, C2-3910-ZM-594
1535 3900-25J-001
MO COLLECTOR
INJECTOR, C2-3910-ZM-584
1536 3900-25J-003
TEST REAGENT
INJECTOR, C2-3910-ZM-695
1537 3900-25J-004
MILK OF LIME
LIME DISTRIBUTION PUMPS,
C2-3920-PP-093/094
1538 3900-25J-012
GRINDING BALLS
BALL MILL TRANSFER
CONVEYOR, C2-3320-CV-034
1539 3300-25J-053
SAMPLER SAFETY SCREEN
FLOTATION SAFETY SCREEN,
C2-3330-SC-505
1540 3300-25J-045
PROCESS WATER
1543
3900-25J-014
PROCESS WATER
1544
3900-25J-014
PROCESS WATER
1545
3900-25J-014
PRIMARY CYCLONE O/F
BALL MILL NO.1 CYCLONE O/F
SAMPLER, C2-3330-SA-501
1547 3300-25J-045
FROTHER GLYCOL
INJECTOR, C2-3910-ZM-675
1549
3900-25J-005
DENSITY CONTROL,
330-DIC-04502
1551
3300-25J-045
IN-LINE ANALYZER
PH-CONTROL,
1556 3300-25J-045
T4
SIZE:
C2-3330-ST-530
CYCLONE U/F LAUNDER DISCHARGE BOX
3320-RL-1012-C1B-2"-N
3320-RF-1016-C1D-1"-N
3330-SL-1071-R1A-6"-N
SIZE:
C2-3320-ST-509
BALL MILL NO. 5 HOOD & CHUTE
3320-RL-1026-C1B-2"-N
3320-WR-1493-C1A-2"-N
3320-RC-1018-C1D-1"-N
3320-WR-1175-C1A-16"-N
3310-SLC-1070-R1A-48"-N
3320-WR-1494-C1A-1-1/2"-N
3320-WR-1171-C1A-16"-N
3320-WR-1171-C1A-16"-N
SIZE:
C2-3320-ST-590
BALL MILL NO. 5 TRAMP CHUTE
SIZE:
C2-3320-LA-501
BALL MILL NO. 5 DISCH LAUNDER
3320-RC-1136-C1D-1"-N
SIZE:
C2-3330-LA-530
CYCLONE U/F LAUNDER
SIZE:
C2-3330-LA-507
PRIMARY CYCLONE OVERFLOW LAUNDER
3330-SL-1073-R1B-48"-N
3320-WR-1172-C1A-16"-N
3330-SL-1072-R1B-16"-N
SIZE:19 X 840 mm
C2-3330-CS-501
PRIMARY CYCLONE CLUSTER
3320-RC-1503-C1D-1"-N
3320-RC-1097-C1D-1"-N
SIZE:
C2-3320-ST-520
BALL MILL NO. 5 FEED CHUTE
AG
KM
LT
ISSUED FOR CLIENT REVIEW
23-Dec-11
B
RP
ISSUED FOR COMBINED REVIEW
29-Jun-11
A
12/23/2011
K. MUNDY
A. GUNSON
W. BIE
L. TAMELIN
12/23/2011
10:30:31
AM
WBS: 3320
B
PIPING AND INSTRUMENTATION DIAGRAM
BALL MILL CIRCUITS
3300-25J-043
BALL MILL NO. 5
RSP
3320
04301
ZS
OP/CL
C2-3320-ZM-036
SIZE:
C2-3320-ZM-036
BOLT REMOVAL TOOL NO. 2
NOTE 3
SIZE: 8.20 m X 14.6 m EGL
MOTOR: 22000.00 kW
C2-3320-ML-501
BALL MILL NO. 5
3320
34301
XA MISMATCH
A-R
3320
34301
ZS
OP/CL
A-R
A-R (QTY 16)
ES
FC
ES
FC
ES
FC
FI
V
V
FC
3330-AIC-04501
BALL MILL DISCHARGE
PRIMARY CYCLONE FEED
SUMP, C2-3310-BX-501
1686 3300-25J-042
3330-SL-1083-R1A-40"-N
FRESH WATER
3320-LV-02307
4130 3300-25J-023
3320
34302
PI
M
3320-FQI-02306
4202
3300-25J-023
3320
04306
FIT
3320
04306
FE
+
3320-WF- -C1A-10"-N
D
4
F
B
A
3
2
1 5 6 8
E
7
C
REV.
APPROVED
CHK.
DES.
REV. DATE REVISION DESCRIPTION
CLIENT
LEAD ENGINEER
SCALE DRAWING NUMBER
CHECK DESIGN CHECK DRAWING
DESIGNED BY DRAWN BY
APPROVAL DATE
APPROVAL DATE
APPROVED
CHK.
DES.
REV. DATE REVISION DESCRIPTION REFERENCE DRAWING No.
1:100
0
1:200
5m
10m
0
5m
10m
15m
20m
1:500
10m
0
20m
30m
40m
50m
1:1000
0
100m
50m
1:20
0
0.5m
1m
1.5m
2m
0
1:25
0.5m
1m
1.5m
1:33
1/3
2.5m
2m
0
1m
2m
3m
0
1:50
1m
2m
3m
4m
5m
CAD FILE NAME: P:0CAD000SPEM**
MODEL UPDATED:
DWG. FILE UPDATED:
MANUAL CHANGES MADE: YES NO YES NO YES NO
PROJECT MANAGER
ENGINEERING MANAGER
AREA PROJECTENGINEER
REFERENCE DRAWINGS
SAFETY SHARE:
APPROVAL DATE
CONTRACT
NO.
SAFETY SHARE :
BA6CVA1.IGR
NOTICE: THIS DRAWING HAS NOT BEEN PUBLISHED AND IS THE SOLE
PROPERTY OF FLUOR AND IS LENT TO THE BORROWER FOR THEIR
CONFIDENTIAL USE ONLY, AND IN CONSIDERATION OF THE LOAN OF THIS
DRAWING, THE BORROWER PROMISES AND AGREES TO RETURN IT UPON
REQUEST AND AGREES THAT IT WILL NOT BE REPRODUCED, COPIED LENT
OR OTHERWISE DISPOSED OF DIRECTLY OR INDIRECTLY, NOR USED FOR
ANY OTHER PURPOSE OTHER THAN WHICH IT IS FURNISHED.
NONE
Apr 2011
240K-C2-
AG
KM
LT
ISSUED FOR CLIENT REVIEW
23-Dec-11
B
RP
ISSUED FOR COMBINED REVIEW
19-Jul-11
A
12/23/2011
K. MUNDY
A. GUNSON
W. BIE
L. TAMELIN
12/23/2011
10:31:41
AM
WBS: 3320
B
PIPING AND INSTRUMENTATION DIAGRAM
BALL MILL CIRCUITS
3300-25J-044
BALL MILL NO. 5 ANCILLARIES
3320
35512
TI
3320
35216
PAL
BEARING
SEGMENT
#4
3320
35502
TI
H, P2
BEARING
SEGMENT
#3
THRUST
BEARING
LUBE PUMP
(STAND-BY)
3320
35521
PI
3320
35215
PI
L, P2
H, P2
THRUST
BEARING
LUBE PUMP
3320
35531
PI
3320
35207
FAL
BEARING
SEGMENT
#1
CIRCULATING
PUMP
(STAND-BY)
3320
35303
XA
3320
35023
LA
L, P2
H, P2
CIRCULATING
PUMP
3320
35511
PI
LOW PRESSURE
STAND-BY
PUMP CONTROL
BEARING
SEGMENT
#2
ACCUMULATOR
PUMP
(STAND-BY)
3320
35501
PI
3320
35008
PAL
L, P2
H, P2
ACCUMULATOR
PUMP
P.O NO.:
VENDOR DWG NO.:
VENDOR:
3320
04402
TE
H, P2
CIRCULATING
PUMP
BEARING
SEGMENT #3 & #4
LUBE PUMP
(STAND BY)
3320
04402
TI
3320
35022
PDI
BEARING SEGMENT #3 & #4
STAND-BY PUMP CONTROL
BEARING
SEGMENT #3 & #4
LUBE PUMP
3320
04401
TI
3320
35018
PAL
ACCUMULATOR #2
BEARING
SEGMENT #1 & #2
LUBE PUMP
(STAND BY)
3320
04401
TE
3320
35021
FAL
ACCUMULATOR #1
BEARING
SEGMENT #1 & #2
LUBE PUMP
3320
04404
TE
3320
35019
PAL
P2
CIRCULATING
PUMP
(STAND-BY)
3320
04404
TI
3320
35023
TI
P2
CIRCULATING
PUMP
3320
04405
FAL
ACCUMULATOR
#2
P2
ACCUMULATOR
PUMP
(STAND-BY)
3320
04405
FISL
ACCUMULATOR
PUMP CONTROL
ACCUMULATOR
PUMP CONTROL
BEARING
SEGMENT #3 & #4
LUBE PUMP
(STAND BY)
3320
04403
TI
3320
35009
PAL
BEARING SEGMENT #1 & #2
STAND-BY PUMP CONTROL
BEARING
SEGMENT #3 & #4
LUBE PUMP
3320
04403
TE
3320
35016
PAL
OIL TANK
BEARING
SEGMENT #1 & #2
LUBE PUMP
(STAND BY)
LUBE TANK
OIL
3320
35017
PI
P2
BEARING
SEGMENT #1 & #2
LUBE PUMP
AIR GAP
SENSORS
A-H, J
3320
35007
PI
LUBE OIL
FILTER
CYCLOCONVERTER
COOLING WATER
PUMP
(STAND BY)
H, P2
3320
35020
PI
HH, P2
CYCLOCONVERTER
COOLING WATER
PUMP
H, P2
P2
P2
FAN #2
RIGHT
3320
35006
PAL
OIL
TANK
FAN #2
LEFT
ACCUMULATOR
PUMP
H, P2
CIRCULATING
STAND-BY
PUMP CONTROL
FAN #1
RIGHT
CIRCULATING STAND-BY
PUMP CONTROL
CIRCULATING
OIL
FAN #1
LEFT
COMMON
ALARM
3320
35206
PDI
LOW PRESSURE
OIL
OVERPRESSURE
FAN RIGHT
P2
LUBE OIL
FILTER
OVERPRESSURE
FAN LEFT
LUBE
TANK OIL
P2
MILL NO. 5 CYCLOCONVERTER CONTROL
3320
35220
XA
COMMON
ALARM
LEAK
CONTROL
H, P2
P2
MILL NO. 5 MOTOR CONTROL
3320
35025
XA
P2
P2
MILL NO.5 FLOATING BEARING
3320
35210
PAL
P2
MILL NO.5 FIXED BEARING
3320
35209
TI
H, P2
MILL NO.5 FLOATING BEARING LUBE UNIT
CIRCULATING
OIL
L, P2
MILL NO.5 FIXED BEARING LUBE UNIT
3320
35208
LALL
P2
BEARING
SEGMENT
#1
3320
35205
PAL
P2
BEARING
SEGMENT
#2
P2
CIRCULATING
PUMP
BEARING
SEGMENT
#3
3320
34915
LAH
L, P2
H, P2
BEARING
SEGMENT
#1
3320-WF-1395-C1A-2"-N
A, B
L, P2
H, P2
LL, P2
BEARING
SEGMENT
#2
3320-WF-1392-C1A-2"-N
3320
34914
MI
BEARING SEGMENT #1 & #2
STAND-BY PUMP CONTROL
BEARING
SEGMENT
#3
3320-WF-1394-C1A-4"-N
3320
35104
TI
MILL BRAKE CONTROLS
THRUST
BEARING
SEGMENT
#1
3320-WF-1393-C1A-4"-N
3320
35103
FI
P2
THRUST
BEARING
SEGMENT
#2
3320
35102
LAH
CIRCULATING
WATER
THRUST
BEARING
SEGMENT
#3
3320
35434
TI
COOLING
WATER
PUMPS
BEARING
SEGMENT
#4
3320
35424
TI
EXPANSION
TANK
BEARING
SEGMENT
#4
3320
35414
TI
ACCUMULATOR
#1
THRUST
BEARING
SEGMENT
#4
3320
35404
TI
BEARING SEGMENT #3 & #4
STAND-BY PUMP CONTROL
L, P2
H, P2
3320
35433
TI
3320
35311
XA
L, P2
H, P2
3320
35423
TI
3320
35301
XA
L, P2
H, P2
3320
35413
TI
3320
35201
XA
L, P2
H, P2
3320
35403
TI
3320
35211
XA
L, P2
H, P2
3320
35110
TI
3320
35202
XA
L, P2
H, P2
3320
35109
TI
3320
35212
XA
L, P2
H, P2
COMMON
ALARM
3320
35108
CI
3320
35203
XA
L, P2
H, P2
3320
34910
XA
3320
35107
PI
3320
35213
XA
L, P2
H, P2
3320
35106
LI
3320
35214
XA
H, P2
3320
35105
TI
3320
35204
XA
H, P2
3320
35432
PI
3320
35015
XA
H, P2
3320
35422
PI
3320
35005
XA
H, P2
3320
35412
PI
3320
35014
XA
WATER LEAK
SENSOR LEFT
3320
35402
PI
3320
35003
XA
COOLING AIR
DISCHARGE
A-B
BEARING
SEGMENT
#1
3320
35012
XA
COOLING
AIR INTAKE
A-B
3320
35401
SI
3320
35002
XA
SEALING
SYSTEM WEAR
A-B
BEARING
SEGMENT
#2
3320
35004
XA
STATOR
WINDING
A-F
3320
35411
SI
3320
35013
XA
COOLING
WATER IN
BEARING
SEGMENT
#4
3320
35011
XA
COOLING
WATER
3320
35431
SI
3320
35001
XA
H, P2
HH, P2
COMMON
ALARM
BEARING
SEGMENT
#3
3320
35111
XA
L, P2
LL, P2
3320
35110
XA
3320
35421
SI
3320
35101
XA
WATER LEAK
SENSOR RIGHT
3320
35314
LALL
3320
34913
XA
COOLANT
FROM HEAT
EXCHANGER
3320
35315
TA
3320
34912
XA
COOLANT
TO HEAT
EXCHANGER
V
3320
35314
LAL
3320
34911
XA
H, P2
HH, P2
V
3320
35316
PDAH
3320
34903
XA
L, P2
V
3320
35317
ZL
3320
34902
XA
L, P2
LL, P2
V
3320
35307
ZL
3320
34901
XA
COOLING
WATER
OUT
V
3320
35306
PDAH
3320
34904
TI
H, P2
HH, P2
3320
35305
TA
P.O NO.:
VENDOR DWG NO.:
VENDOR:
3320
34905
TI
H, P2
HH, P2
3320
35304
LALL
3320
34906
TI
BEARING
SEGMENT
#4
P.O NO.:
VENDOR DWG NO.:
VENDOR:
3320
35304
LAL
P2
BEARING
SEGMENT
#3
3320
35532
TI
3320
34907
LAH
BEARING
SEGMENT
#4
P.O NO.:
VENDOR DWG NO.:
VENDOR:
3320
35522
TI
3320
34908
XA
BEARING
SEGMENT
#3
3320-WF-1396-C1A-2"-N
3320
35533
SI
3320
34909
ZA
BEARING
SEGMENT
#2
3320-WF-1389-C1A-4"-N
P.O NO.:
VENDOR DWG NO.:
VENDOR:
3320
35523
SI
3320
35219
PAL
BEARING
SEGMENT
#1
3320-WF-1388-C1A-4"-N
3320
35513
SI
L,P2
LL, P2
BEARING
SEGMENT
#1
3320-WF-1387-C1A-2"-N
COMMON
ALARM
COMMON
ALARM
P.O NO.:
VENDOR DWG NO.:
VENDOR:
3320
35503
SI
3320
35218
PAL
BEARING
SEGMENT
#2
3320-WF-1391-C1A-2"-N
3320
35510
XA
3320
35410
XA
H, P2
HH, P2
3320
35217
PAL
L, P2
H, P2
3320-WF-1390-C1A-2"-N
P.O NO.:
VENDOR DWG NO.:
VENDOR:
L, P2
H, P2
L, P2
H, P2
L, P2
H, P2
L, P2
H, P2
HH, P1
C2-3320-ML-501
CLOSED LOOP CWR
GRINDING AREA HEAT
EXCHANGERS,
3889 3300-25J-057
CLOSED LOOP CWR
GRINDING AREA HEAT
EXCHANGERS,
3887 3300-25J-057
CLOSED LOOP CWR
GRINDING AREA HEAT
EXCHANGERS,
3888 3300-25J-057
CLOSED LOOP CWR
GRINDING AREA HEAT
EXCHANGERS,
3885 3300-25J-057
CLOSED LOOP CWR
GRINDING AREA HEAT
EXCHANGERS,
3886 3300-25J-057
C2-3820-HX-770-771/772
C2-3820-HX-770-771/772
C2-3820-HX-770-771/772
C2-3820-HX-770-771/772
C2-3820-HX-770-771/772
CLOSED LOOP CWR
GRINDING COOLING SYSTEM
PUMPS, C2-3320-PP-765/766
3931 3300-25J-056
CLOSED LOOP CWR
GRINDING COOLING SYSTEM
PUMPS, C2-3320-PP-765/766
3930 3300-25J-056
CLOSED LOOP CWR
GRINDING COOLING SYSTEM
PUMPS, C2-3320-PP-765/766
3933 3300-25J-056
CLOSED LOOP CWR
GRINDING COOLING SYSTEM
PUMPS, C2-3320-PP-765/766
3932 3300-25J-056
CLOSED LOOP CWR
GRINDING COOLING SYSTEM
PUMPS, C2-3320-PP-765/766
3934 3300-25J-056
D
4
F
B
A
3
2
1 5 6 8
E
7
C
REV.
APPROVED
CHK.
DES.
REV. DATE REVISION DESCRIPTION
CLIENT
LEAD ENGINEER
SCALE DRAWING NUMBER
CHECK DESIGN CHECK DRAWING
DESIGNED BY DRAWN BY
APPROVAL DATE
APPROVAL DATE
APPROVED
CHK.
DES.
REV. DATE REVISION DESCRIPTION REFERENCE DRAWING No.
1:100
0
1:200
5m
10m
0
5m
10m
15m
20m
1:500
10m
0
20m
30m
40m
50m
1:1000
0
100m
50m
1:20
0
0.5m
1m
1.5m
2m
0
1:25
0.5m
1m
1.5m
1:33
1/3
2.5m
2m
0
1m
2m
3m
0
1:50
1m
2m
3m
4m
5m
CAD FILE NAME: P:0CAD000SPEM**
MODEL UPDATED:
DWG. FILE UPDATED:
MANUAL CHANGES MADE: YES NO YES NO YES NO
PROJECT MANAGER
ENGINEERING MANAGER
AREA PROJECTENGINEER
REFERENCE DRAWINGS
SAFETY SHARE:
APPROVAL DATE
CONTRACT
NO.
SAFETY SHARE :
BA6CVA1.IGR
NOTICE: THIS DRAWING HAS NOT BEEN PUBLISHED AND IS THE SOLE
PROPERTY OF FLUOR AND IS LENT TO THE BORROWER FOR THEIR
CONFIDENTIAL USE ONLY, AND IN CONSIDERATION OF THE LOAN OF THIS
DRAWING, THE BORROWER PROMISES AND AGREES TO RETURN IT UPON
REQUEST AND AGREES THAT IT WILL NOT BE REPRODUCED, COPIED LENT
OR OTHERWISE DISPOSED OF DIRECTLY OR INDIRECTLY, NOR USED FOR
ANY OTHER PURPOSE OTHER THAN WHICH IT IS FURNISHED.
NONE
Apr 2011
240K-C2-
3330
34502
XV
+
FI
3330
04501
AE
3330
04501
AIT
3330
04501
AIC
3330
04502
DX
3330
04502
DE
3330
04502
DIT
3330
04502
DIC
SHIFT SAMPLE SHIFT SAMPLE
3330
34501
XV
+
FI
3330
04511
AE
3330
04511
AIT
3330
04511
AIC
3330
04512
DX
3330
04512
DE
3330
04512
DIT
3330
04512
DIC
VENDOR DWG
3300-25J-
VENDOR DWG
3300-25J-
V
C2-3330-AZ-501
C2-3330-AZ-502
C2-3330-ST-705
C2-3330-SA-501
C2-3330-ST-706
C2-3330-SA-601
1-1/2"x1/2"
1-1/2"x1/2"
3% SLOPE
3% SLOPE
P.O NO.:
VENDOR DWG NO.:
VENDOR:
P.O NO.:
VENDOR DWG NO.:
VENDOR:
C2-3330-SC-605
C2-3330-SC-505
PRIMARY CYCLONE O/F
ROUGHER CELL NO.1 ROW
NO.5, C2-3410-CF-501
1123 3400-25J-014
FLOW CONTROL,
3320-FIC-04302
1551 3300-25J-043
PRIMARY CYCLONE O/F
ROUGHER CELL NO.1 ROW
NO.6, C2-3410-CF-601
1134 3400-25J-014
PRIMARY CYCLONE O/F
ROUGHER CELL NO.1 ROW
NO.5, C2-3410-CF-501
1136 3400-25J-014
FLOW CONTROL,
3320-FIC-04702
1578 3300-25J-047
C2-3320-LA-530
LIME CONTROL VALVE,
3320-AV-04701
1565
3300-25J-047
PRIMARY CYCLONE O/F
PRIMARY CYCLONE O/F
LAUNDER, C2-3330-LA-607
1573 3300-25J-047
SAFETY SCREEN DUMP
PRIMARY CYCLONE U/F
LAUNDER, C2-3330-LA-630
1563
3300-25J-047 PRIMARY CYCLONE O/F
ROUGHER CELL NO.1 ROW
NO.6, C2-3410-CF-601
1133 3400-25J-014
LIME CONTROL VALVE,
3320-AV-04301
1556
3300-25J-043
PRIMARY CYCLONE O/F
PRIMARY CYCLONE O/F
LAUNDER, C2-3330-LA-507
1547 3300-25J-043
SAFETY SCREEN DUMP
PRIMARY CYCLONE U/F
LAUNDER, C2-3330-LA-530
1540
3300-25J-043
FRESH WATER
2163 3300-25J-042
SIZE:
C2-3330-ST-706
BALL MILL NO.6 O/F SAMPLER DISCHARGE CHUTE
ES
SIZE:
C2-3330-AZ-501
GRINDING LINES NO.5 & NO.6 O/F PARTICLE SIZE ANALYZER
SIZE:
C2-3330-ST-705
BALL MILL NO.5 O/F SAMPLER DISCHARGE CHUTE
SIZE:
C2-3330-SC-505
FLOTATION SAFETY SCREEN NO.1
AI
SIZE:
C2-3330-AZ-502
GRINDING LINES NO.5 & NO.6 O/F INSTREAM ANALYZER
ES
3330-SL-1078-R1A-4"-N
AI
SIZE:
C2-3330-SA-601
BALL MILL NO.6 CYCLONE O/F SAMPLER
SIZE:
C2-3330-SC-605
FLOTATION SAFETY SCREEN NO.2
ES
3330-SL-1075-R1A-4"-N
3330-SL-1081-R1B-40"-N
3330-SL-1076-R1A-4"-N
3330-SL-1077-R1A-4"-N
3330-WF-1397-C1A-1-1/2"-N
SIZE:
C2-3330-SA-501
BALL MILL NO.5 CYCLONE O/F SAMPLER
AG
KM
LT
ISSUED FOR CLIENT REVIEW
23-Dec-11
B
RP
ISSUED FOR COMBINED REVIEW
29-Jun-11
A
12/23/2011
K. MUNDY
A. GUNSON
W. BIE
L. TAMELIN
12/21/2011
2:29:04
PM
WBS: 3330
B
PIPING AND INSTRUMENTATION DIAGRAM
BALL MILL CLASSIFICATION
3300-25J-045
MILLS NO. 5 & 6 SAMPLING
3330-SL-1085-R1B-40"-N
FRESH WATER
3262 3300-25J-046
3330
34502
XA
3330
34502
XA
MISMATCH
MISMATCH
PH
PH
3330-WF-1174-C1A-1-1/2"-N
V
V
INSTRUMENT AIR
DISTRIBUTION
3516 3900-25J-022
M
3330
34502
HS
3330
34502
ZS
ES
V3
3330
34501
HS
3330
34501
ZS
ES
M
V3
3960-AI-1065-G1A-1"-N
3330-WF-1114-C1A-4"-N
3330-SL-1082-R1A-40"-N
3330-SL-1074-R1B-48"-N
3320-SL-1072-R1B-48"-N
3330-SL-1083-R1A-40"-N
3330-SL-1079-C1B-4"-N
3330-SL-1080-C1B-4"-N
T3
3310
04604
XA
3310
04605
XA
3310
04681 H
TI
3310
04603
FI
L, P2
LL, P1
M
3310
04606
PI
3310
04603
PI
L, P1
3310
04681
II
3310
04602
LIC
3310
04602
LT
3310
04608
XA
M
3310
04601
FIT
3310
04681 H
TE
AP
3310
04602
LE
3310
04608
ZS
3310
04607
PI
3310
04601
DIT
3310
04603
PIT
3310
04601
DX
M
3310
04681
XA
3310
04603
FIT
3310
04601
FI
3310
04602
LI
3310
04601
DI
AP
3310
04681 G
TE
3310
04681 G
TI
BRG
FRONT
H, P2
HH,P1
3310
04681
HS
J/SP
3310
04601
DE
3310
04601
WY
3310
04604
ZS
3310
04608 B
HS
OP/CL
L/R
3310
04605
ZS
3310
04601
WI
GLAND SEAL WATER
2949
3900-25J-023
FRESH WATER
3263 3300-25J-045
CRUSHING PLANT
COARSE SCREENING
EFFLUENT PUMPS,
3710 3200-25J-019
EFFLUENT
BALL MILL NO.6 DISCHARGE
BALL MILL NO.6 DISCHARGE
LAUNDER, C2-3320-LA-601
1719 3300-25J-047
PROCESS WATER
1715 3900-25J-014
BALL MILL SCREEN U/S
BALL MILL FEED SCREEN,
C2-3310-SC-602
1720 3300-25J-018
PROCESS WATER
1716 3900-25J-014
INSTRUMENT AIR
DISTRIBUTION
3518 3900-25J-022
BALL MILL SCREEN U/S
BALL MILL FEED SCREEN,
C2-3310-SC-601
1721 3300-25J-018
PRIMARY CYCLONE FEED
PRIMARY CYCLONE,
C2-3330-CS-601
1729 3300-25J-047
OP/CL
OP/CL
MISMATCH
MISMATCH
NOTE 3
(LAUNDER)
NOTE 2
MIN
NOTES:
1. DRAIN SEQUENCE WILL OPEN THE DRAIN VALVE AFTER A SET
PERIOD OF INACTIVITY.
2. WILL OPERATE IN ACCORDANCE WITH THE DRAIN PROCEDURE
AS DESCRIBED IN THE CONTROL PHILOSOPHY.
3. DIRECT DRAIN LINES TOWARDS AREA SPILLAGE PUMP.
4. IN ADDITION TO THE STANDARD MAINTENANCE DATA,
THIS WILL ALSO CAPTURE THE PUMP LIFE VS THE MASS FLOW
TROUGH THE PUMP.
5. DELETED
6. CYCLONE FEED PUMP FLOW SWITCHES, PRESSURE SWITCHES
AND ISOLATION VALVES TO BE LOCATED ON THE OPERATING LEVEL.
7. SPACE PROVIDED FOR MANUAL SAMPLING.
MIN
MASS FLOW
MIN
NOTE 3
C2-3240-PP-023/024
AFD
H, P2
L, P2
NOTE 2
FAULT
BRG
REAR
H, P2
HH,P1
OP/CL
MISMATCH
NOTE 7
36"
52"x36"
C2-3310-BX-601
3310
04603
FE
+
FI
3310
04605
XV
+
3310
04604
XV
+
1-1/2"
3310
04601
FE
+
TO FLOOR
3"x2"
FI
4"x1/2"
V V
1-1/2"
3"x2"
C2-3310-PP-601
TO FLOOR
3310
04608
XV
+
AG
KM
LT
ISSUED FOR CLIENT REVIEW
23-Dec-11
B
RP
ISSUED FOR COMBINED REVIEW
29-Jun-11
A
12/23/2011
K. MUNDY
A. GUNSON
W. BIE
L. TAMELIN
12/23/2011
10:34:10
AM
WBS: 3310
B
PIPING AND INSTRUMENTATION DIAGRAM
BALL MILL FEED
3300-25J-046
PRIMARY CYCLONE FEED SUMP NO. 6
2"x1-1/4"
FI
3310-WF-1114-C1A-4"-N
3310-SL-1807-C1B-4"-N
3310-WF-1489-C1A-8"-N
3310-WG-1025-C1A-2"-N
3310-SL-1090-R1B-48"-N
SIZE:
MATERIAL:
MOTOR:
C2-3310-PP-601
PRIMARY CYCLONE FEED PUMP NO.6 (AFD)
3310-WR-1495-C1A-8"-N
ES
3310-WF-1398-C1A-1-1/2"-N
3310-SL-1089-R1B-52"-N
SIZE:
MATERIAL:
CAPACITY:290.0 m^3
TRIM:3310-SL-1086-C1B
C2-3310-BX-601
BALL MILL CYCLONE FEED SUMP
ES
3310-WR-1168-C1A-8"-N
3310-WR-1134-C1A-8"-N
ES
ES
D
4
F
B
A
3
2
1 5 6 8
E
7
C
REV.
APPROVED
CHK.
DES.
REV. DATE REVISION DESCRIPTION
CLIENT
LEAD ENGINEER
SCALE DRAWING NUMBER
CHECK DESIGN CHECK DRAWING
DESIGNED BY DRAWN BY
APPROVAL DATE
APPROVAL DATE
APPROVED
CHK.
DES.
REV. DATE REVISION DESCRIPTION REFERENCE DRAWING No.
1:100
0
1:200
5m
10m
0
5m
10m
15m
20m
1:500
10m
0
20m
30m
40m
50m
1:1000
0
100m
50m
1:20
0
0.5m
1m
1.5m
2m
0
1:25
0.5m
1m
1.5m
1:33
1/3
2.5m
2m
0
1m
2m
3m
0
1:50
1m
2m
3m
4m
5m
CAD FILE NAME: P:0CAD000SPEM**
MODEL UPDATED:
DWG. FILE UPDATED:
MANUAL CHANGES MADE: YES NO YES NO YES NO
PROJECT MANAGER
ENGINEERING MANAGER
AREA PROJECTENGINEER
REFERENCE DRAWINGS
SAFETY SHARE:
APPROVAL DATE
CONTRACT
NO.
SAFETY SHARE :
BA6CVA1.IGR
NOTICE: THIS DRAWING HAS NOT BEEN PUBLISHED AND IS THE SOLE
PROPERTY OF FLUOR AND IS LENT TO THE BORROWER FOR THEIR
CONFIDENTIAL USE ONLY, AND IN CONSIDERATION OF THE LOAN OF THIS
DRAWING, THE BORROWER PROMISES AND AGREES TO RETURN IT UPON
REQUEST AND AGREES THAT IT WILL NOT BE REPRODUCED, COPIED LENT
OR OTHERWISE DISPOSED OF DIRECTLY OR INDIRECTLY, NOR USED FOR
ANY OTHER PURPOSE OTHER THAN WHICH IT IS FURNISHED.
NONE
Apr 2011
240K-C2-
3310-AI-1075-G1A-1"-N
C2-3300-HX-770/771/772
FRESH WATER
GRINDING AREA HEAT
EXCHANGERS,
3713 3300-25J-054
D
4
F
B
A
3
2
1 5 6 8
E
7
C
REV.
APPROVED
CHK.
DES.
REV. DATE REVISION DESCRIPTION
CLIENT
LEAD ENGINEER
SCALE DRAWING NUMBER
CHECK DESIGN CHECK DRAWING
DESIGNED BY DRAWN BY
APPROVAL DATE
APPROVAL DATE
APPROVED
CHK.
DES.
REV. DATE REVISION DESCRIPTION REFERENCE DRAWING No.
1:100
0
1:200
5m
10m
0
5m
10m
15m
20m
1:500
10m
0
20m
30m
40m
50m
1:1000
0
100m
50m
1:20
0
0.5m
1m
1.5m
2m
0
1:25
0.5m
1m
1.5m
1:33
1/3
2.5m
2m
0
1m
2m
3m
0
1:50
1m
2m
3m
4m
5m
CAD FILE NAME: P:0CAD000SPEM**
MODEL UPDATED:
DWG. FILE UPDATED:
MANUAL CHANGES MADE: YES NO YES NO YES NO
PROJECT MANAGER
ENGINEERING MANAGER
AREA PROJECTENGINEER
REFERENCE DRAWINGS
SAFETY SHARE:
APPROVAL DATE
CONTRACT
NO.
SAFETY SHARE :
BA6CVA1.IGR
NOTICE: THIS DRAWING HAS NOT BEEN PUBLISHED AND IS THE SOLE
PROPERTY OF FLUOR AND IS LENT TO THE BORROWER FOR THEIR
CONFIDENTIAL USE ONLY, AND IN CONSIDERATION OF THE LOAN OF THIS
DRAWING, THE BORROWER PROMISES AND AGREES TO RETURN IT UPON
REQUEST AND AGREES THAT IT WILL NOT BE REPRODUCED, COPIED LENT
OR OTHERWISE DISPOSED OF DIRECTLY OR INDIRECTLY, NOR USED FOR
ANY OTHER PURPOSE OTHER THAN WHICH IT IS FURNISHED.
NONE
Apr 2011
240K-C2-
TOTE BIN
3320
04703
FV
+
3320
04781
HS
3320
04704
FIC
3320
04704
FE
+
C2-3330-LA-607
C2-3320-LA-601
H, P2
L, P2
LAUNDER
FAULT
16"x10"
C2-3330-ST-630
NOTE 2
C2-3330-LA-630
3320
04705
PIT
3320
04704
FIT
C2-3320-ST-609
3320
04781
II
3320
04711
XA
+
3320
04703
FIC
3320
04702
FIC
10"
3320
04704
FV
+
3320
04703
FE
+
3320
34701
XV
+
3320
04781
XA
3320
04702
FE
+
NOTES:
1. MILL CAPACITY IS BASED ON NEW FEED.
2. SPACE PROVIDED FOR MANUAL SAMPLING
3. HORN FOR START UP.
16"x14"
NOTE 1
C2-3320-ST-690
EMERGENCY BALLS
FROM BALL BUCKET
16"x14"
SIZE:
C2-3320-SC-607
BAL MILL NO. 6 DISCH TRAMP GRIZZLY
NOTE 2
14"
3320
04703
FIT
6"
3320
04705
PIC
AP
3320
04701
AV
+
M
M
C2-3330-CS-601
SAMPLE POINT
3320
04702
FIT
C2-3320-SC-607
C2-3320-ML-601
1-1/2"x1/2"
A TO N
VENDOR
C2-3320-ST-620
M
3320
04702
FV
+
NOTE 2
16"x10"
SECONDARY COLLECTOR
INJECTOR, C2-3910-ZM-621
1558 3900-25J-002
PRIMARY COLLECTOR
INJECTOR, C2-3910-ZM-595
1559 3900-25J-001
MO COLLECTOR
INJECTOR, C2-3910-ZM-583
1560 3900-25J-003
MILK OF LIME
LIME DISTRIBUTION PUMPS,
C2-3920-PP-093/094
1561 3900-25J-012
TEST REAGENT
INJECTOR, C2-3910-ZM-694
1562 3900-25J-004
SAMPLER SAFETY SCREEN
FLOTATION SAFETY SCREEN,
C2-3330-SC-605
1563 3300-25J-045
PRIMARY CYCLONE FEED
PRIMARY CYCLONE FEED
PUMP, C2-3310-PP-601
1564 3300-25J-046
IN-LINE ANALYZER
PH-CONTROL,
1565 3300-25J-045
GRINDING BALLS
BALL MILL TRANSFER
CONVEYOR, C2-3320-CV-034
1566 3300-25J-053
PROCESS WATER
1570
3900-25J-014
PROCESS WATER
1571
3900-25J-014
PROCESS WATER
1572
3900-25J-014
PRIMARY CYCLONE O/F
BALL MILL NO.1 CYCLONE O/F
SAMPLER, C2-3330-SA-601
1573 3300-25J-045
FROTHER GLYCOL
INJECTOR, C2-3910-ZM-676
1574
3900-25J-005
DENSITY CONTROL,
3330-DIC-04512
1578
3300-25J-045
T4
3320-WR-1166-C1A-16"-N
SIZE:
C2-3330-ST-630
CYCLONE U/F LAUNDER DISCH BOX
3320-RC-1054-C1D-1"-N
3320-RL-1027-C1B-2"-N
SIZE:
C2-3320-ST-690
BALL MILL NO. 6 TRAMP CHUTE
3320-WR-1497-C1A-1-1/2"-N
3320-WR-1496-C1A-2"-N
3320-WR-1166-C1A-16"-N
3320-RC-1019-C1D-1"-N
3330-SL-1091-R1A-6"-N
3320-RC-1096-C1D-1"-N
SIZE:
C2-3330-LA-607
PRIMARY CYCLONE O/F LAUNDER
SIZE:
C2-3320-LA-601
BALL MILL NO. 6 DISCH LAUNDER
3320-RL-1013-C1B-2"-N
3320-RC-1137-C1D-1"-N
SIZE:
C2-3320-ST-609
BALL MILL NO. 6 HOOD & CHUTE
3330-SL-1074-R1B-16"-N
SIZE:
C2-3320-ST-620
BALL MILL NO. 6 FEED CHUTE
3320-WR-1170-C1D-16"-N
3330-SL-1090-R1A-48"-N
SIZE:16 X 840 mm
C2-3330-CS-601
PRIMARY CYCLONE CLUSTER
3330-SL-1092-R1B-48"-N
SIZE:
C2-3330-LA-630
CYCLONE U/F LAUNDER
3320-WR-1167-C1A-16"-N
3320-RF-1017-C1D-1"-N
AG
KM
LT
ISSUED FOR CLIENT REVIEW
23-Dec-11
B
RP
ISSUED FOR COMBINED REVIEW
29-Jun-11
A
12/23/2011
K. MUNDY
A. GUNSON
W. BIE
L. TAMELIN
12/22/2011
4:35:14
PM
WBS: 3320
B
PIPING AND INSTRUMENTATION DIAGRAM
BALL MILL CIRCUITS
3300-25J-047
BALL MILL NO. 6
RSP
3320
04701
ZS
OP/CL
SIZE: 8.2 m 14.6 m EGL
MOTOR: 22000.00 kW
C2-3320-ML-601
BALL MILL NO. 6
NOTE 3
3320
34701
XA
MISMATCH
A-R
3320
34701
ZS
A-R (QTY 16)
A-R
OP/CL
BALL MILL DISCHARGE
PRIMARY CYCLONE FEED
SUMP, C2-3310-BX-501
1719 3300-25J-046
ES
FC
FC
ES
ES
FC
FI
V
V
FC
3330-AIC-04511
3320-SL-1082-R1A-40"-N
3320
34702
PI
FRESH WATER
3320-LV-02307
4128 3300-25J-023
3320-WF- -C1A-10"-N
3320-FQI-02306
4188
3300-25J-023
M
3320
04706
FIT
3320
04706
FE
+
D
4
F
B
A
3
2
1 5 6 8
E
7
C
REV.
APPROVED
CHK.
DES.
REV. DATE REVISION DESCRIPTION
CLIENT
LEAD ENGINEER
SCALE DRAWING NUMBER
CHECK DESIGN CHECK DRAWING
DESIGNED BY DRAWN BY
APPROVAL DATE
APPROVAL DATE
APPROVED
CHK.
DES.
REV. DATE REVISION DESCRIPTION REFERENCE DRAWING No.
1:100
0
1:200
5m
10m
0
5m
10m
15m
20m
1:500
10m
0
20m
30m
40m
50m
1:1000
0
100m
50m
1:20
0
0.5m
1m
1.5m
2m
0
1:25
0.5m
1m
1.5m
1:33
1/3
2.5m
2m
0
1m
2m
3m
0
1:50
1m
2m
3m
4m
5m
CAD FILE NAME: P:0CAD000SPEM**
MODEL UPDATED:
DWG. FILE UPDATED:
MANUAL CHANGES MADE: YES NO YES NO YES NO
PROJECT MANAGER
ENGINEERING MANAGER
AREA PROJECTENGINEER
REFERENCE DRAWINGS
SAFETY SHARE:
APPROVAL DATE
CONTRACT
NO.
SAFETY SHARE :
BA6CVA1.IGR
NOTICE: THIS DRAWING HAS NOT BEEN PUBLISHED AND IS THE SOLE
PROPERTY OF FLUOR AND IS LENT TO THE BORROWER FOR THEIR
CONFIDENTIAL USE ONLY, AND IN CONSIDERATION OF THE LOAN OF THIS
DRAWING, THE BORROWER PROMISES AND AGREES TO RETURN IT UPON
REQUEST AND AGREES THAT IT WILL NOT BE REPRODUCED, COPIED LENT
OR OTHERWISE DISPOSED OF DIRECTLY OR INDIRECTLY, NOR USED FOR
ANY OTHER PURPOSE OTHER THAN WHICH IT IS FURNISHED.
NONE
Apr 2011
240K-C2-
AG
KM
LT
ISSUED FOR CLIENT REVIEW
23-Dec-11
B
RP
ISSUED FOR COMBINED REVIEW
19-Jul-11
A
12/24/2011
K. MUNDY
A. GUNSON
W. BIE
L. TAMELIN
12/23/2011
10:36:21
AM
WBS: 3320
B
PIPING AND INSTRUMENTATION DIAGRAM
BALL MILL CIRCUITS
3300-25J-051
BALL MILL NO. 6 ANCILLARIES
3320
36212
TI
3320
35916
PAL
BEARING
SEGMENT
#4
3320
36202
TI
H, P2
BEARING
SEGMENT
#3
THRUST
BEARING
LUBE PUMP
(STAND-BY)
3320
36221
PI
3320
35915
PI
L, P2
H, P2
THRUST
BEARING
LUBE PUMP
3320
36231
PI
3320
35907
FAL
BEARING
SEGMENT
#1
CIRCULATING
PUMP
(STAND-BY)
3320
36003
XA
3320
35723
LA
L, P2
H, P2
CIRCULATING
PUMP
3320
36211
PI
LOW PRESSURE
STAND-BY
PUMP CONTROL
BEARING
SEGMENT
#2
ACCUMULATOR
PUMP
(STAND-BY)
3320
36201
PI
3320
35708
PAL
L, P2
H, P2
ACCUMULATOR
PUMP
P.O NO.:
VENDOR DWG NO.:
VENDOR:
3320
05102
TE
H, P2
CIRCULATING
PUMP
BEARING
SEGMENT #3 & #4
LUBE PUMP
(STAND BY)
3320
05102
TI
3320
35722
PDI
BEARING SEGMENT #3 & #4
STAND-BY PUMP CONTROL
BEARING
SEGMENT #3 & #4
LUBE PUMP
3320
05101
TI
3320
35718
PAL
ACCUMULATOR #2
BEARING
SEGMENT #1 & #2
LUBE PUMP
(STAND BY)
3320
05101
TE
3320
35721
FAL
ACCUMULATOR #1
BEARING
SEGMENT #1 & #2
LUBE PUMP
3320
05104
TE
3320
35719
PAL
P2
CIRCULATING
PUMP
(STAND-BY)
3320
05104
TI
3320
35723
TI
P2
CIRCULATING
PUMP
3320
05105
FAL
ACCUMULATOR
#2
P2
ACCUMULATOR
PUMP
(STAND-BY)
3320
05105
FISL
ACCUMULATOR
PUMP CONTROL
ACCUMULATOR
PUMP CONTROL
BEARING
SEGMENT #3 & #4
LUBE PUMP
(STAND BY)
3320
05103
TI
3320
35709
PAL
BEARING SEGMENT #1 & #2
STAND-BY PUMP CONTROL
BEARING
SEGMENT #3 & #4
LUBE PUMP
3320
05103
TE
3320
35716
PAL
OIL TANK
BEARING
SEGMENT #1 & #2
LUBE PUMP
(STAND BY)
LUBE TANK
OIL
3320
33217
PI
P2
BEARING
SEGMENT #1 & #2
LUBE PUMP
AIR GAP
SENSORS
A-H, J
3320
35707
PI
LUBE OIL
FILTER
CYCLOCONVERTER
COOLING WATER
PUMP
(STAND BY)
H, P2
3320
35720
PI
HH, P2
CYCLOCONVERTER
COOLING WATER
PUMP
H, P2
P2
P2
FAN #2
RIGHT
3320
35706
PAL
OIL
TANK
FAN #2
LEFT
ACCUMULATOR
PUMP
H, P2
CIRCULATING
STAND-BY
PUMP CONTROL
FAN #1
RIGHT
CIRCULATING STAND-BY
PUMP CONTROL
CIRCULATING
OIL
FAN #1
LEFT
COMMON
ALARM
3320
35906
PDI
LOW PRESSURE
OIL
OVERPRESSURE
FAN RIGHT
P2
LUBE OIL
FILTER
OVERPRESSURE
FAN LEFT
LUBE
TANK OIL
P2
MILL NO. 6 CYCLOCONVERTER CONTROL
3320
35920
XA
COMMON
ALARM
LEAK
CONTROL
H, P2
P2
MILL NO. 6 MOTOR CONTROL
3320
35725
XA
P2
P2
MILL NO.6 FLOATING BEARING
3320
35910
PAL
P2
MILL NO.6 FIXED BEARING
3320
35909
TI
H, P2
MILL NO.6 FLOATING BEARING LUBE UNIT
CIRCULATING
OIL
L, P2
MILL NO.6 FIXED BEARING LUBE UNIT
3320
35908
LALL
P2
BEARING
SEGMENT
#1
3320
35905
PAL
P2
BEARING
SEGMENT
#2
P2
CIRCULATING
PUMP
BEARING
SEGMENT
#3
3320
35615
LAH
L, P2
H, P2
BEARING
SEGMENT
#1
3320-WF-1407-C1A-2"-N
A, B
L, P2
H, P2
LL, P2
BEARING
SEGMENT
#2
3320-WF-1404-C1A-2"-N
3320
35614
MI
BEARING SEGMENT #1 & #2
STAND-BY PUMP CONTROL
BEARING
SEGMENT
#3
3320-WF-1406-C1A-4"-N
3320
35804
TI
MILL BRAKE CONTROLS
THRUST
BEARING
SEGMENT
#1
3320-WF-1405-C1A-4"-N
3320
35803
FI
P2
THRUST
BEARING
SEGMENT
#2
3320
35802
LAH
CIRCULATING
WATER
THRUST
BEARING
SEGMENT
#3
3320
36134
TI
COOLING
WATER
PUMPS
BEARING
SEGMENT
#4
3320
36124
TI
EXPANSION
TANK
BEARING
SEGMENT
#4
3320
36114
TI
ACCUMULATOR
#1
THRUST
BEARING
SEGMENT
#4
3320
36104
TI
BEARING SEGMENT #3 & #4
STAND-BY PUMP CONTROL
L, P2
H, P2
3320
36133
TI
3320
36011
XA
L, P2
H, P2
3320
36123
TI
3320
36001
XA
L, P2
H, P2
3320
36113
TI
3320
35901
XA
L, P2
H, P2
3320
36103
TI
3320
35911
XA
L, P2
H, P2
3320
35810
TI
3320
35902
XA
L, P2
H, P2
3320
35809
TI
3320
35912
XA
L, P2
H, P2
COMMON
ALARM
3320
35808
CI
3320
35903
XA
L, P2
H, P2
3320
35610
XA
3320
35807
PI
3320
35913
XA
L, P2
H, P2
3320
35806
LI
3320
3345914
XA
H, P2
3320
35805
TI
3320
35904
XA
H, P2
3320
36132
PI
3320
35715
XA
H, P2
3320
36122
PI
3320
35705
XA
H, P2
3320
36112
PI
3320
35714
XA
WATER LEAK
SENSOR LEFT
3320
36102
PI
3320
35703
XA
COOLING AIR
DISCHARGE
A-B
BEARING
SEGMENT
#1
3320
35712
XA
COOLING
AIR INTAKE
A-B
3320
36101
SI
3320
35702
XA
SEALING
SYSTEM WEAR
A-B
BEARING
SEGMENT
#2
3320
35704
XA
STATOR
WINDING
A-F
3320
36111
SI
3320
35713
XA
COOLING
WATER IN
BEARING
SEGMENT
#4
3320
35711
XA
COOLING
WATER
3320
36131
SI
3320
35701
XA
H, P2
HH, P2
COMMON
ALARM
BEARING
SEGMENT
#3
3320
35811
XA
L, P2
LL, P2
3320
35810
XA
3320
36121
SI
3320
35801
XA
WATER LEAK
SENSOR RIGHT
3320
36014
LALL
3320
35613
XA
COOLANT
FROM HEAT
EXCHANGER
3320
36015
TA
3320
35612
XA
COOLANT
TO HEAT
EXCHANGER
V
3320
36014
LAL
3320
35611
XA
H, P2
HH, P2
V
3320
36016
PDAH
3320
35603
XA
L, P2
V
3320
36017
ZL
3320
35656
XA
L, P2
LL, P2
V
3320
36007
ZL
3320
35601
XA
COOLING
WATER
OUT
V
3320
36005
PDAH
3320
35604
TI
H, P2
HH, P2
3320
3605
TA
P.O NO.:
VENDOR DWG NO.:
VENDOR:
3320
35605
TI
H, P2
HH, P2
3320
36004
LALL
3320
35606
TI
BEARING
SEGMENT
#4
P.O NO.:
VENDOR DWG NO.:
VENDOR:
3320
36004
LAL
P2
BEARING
SEGMENT
#3
3320
36232
TI
3320
35607
LAH
BEARING
SEGMENT
#4
P.O NO.:
VENDOR DWG NO.:
VENDOR:
3320
36222
TI
3320
35608
XA
BEARING
SEGMENT
#3
3320-WF-1408-C1A-2"-N
3320
36233
SI
3320
35609
ZA
BEARING
SEGMENT
#2
3320-WF-1401-C1A-4"-N
P.O NO.:
VENDOR DWG NO.:
VENDOR:
3320
36223
SI
3320
35919
PAL
BEARING
SEGMENT
#1
3320-WF-1400-C1A-4"-N
3320
36213
SI
L,P2
LL, P2
BEARING
SEGMENT
#1
3320-WF-1399-C1A-2"-N
COMMON
ALARM
COMMON
ALARM
P.O NO.:
VENDOR DWG NO.:
VENDOR:
3320
36203
SI
3320
35918
PAL
BEARING
SEGMENT
#2
3320-WF-1403-C1A-2"-N
3320
36210
XA
3320
36110
XA
H, P2
HH, P2
3320
35917
PAL
L, P2
H, P2
3320-WF-1402-C1A-2"-N
P.O NO.:
VENDOR DWG NO.:
VENDOR:
L, P2
H, P2
L, P2
H, P2
L, P2
H, P2
L, P2
H, P2
HH, P1
C2-3320-ML-601
CLOSED LOOP CWR
GRINDING AREA HEAT
EXCHANGERS,
3890 3300-25J-057
CLOSED LOOP CWR
GRINDING AREA HEAT
EXCHANGERS,
3891 3300-25J-057
CLOSED LOOP CWR
GRINDING AREA HEAT
EXCHANGERS,
3893 3300-25J-057
CLOSED LOOP CWR
GRINDING AREA HEAT
EXCHANGERS,
3892 3300-25J-057
CLOSED LOOP CWR
GRINDING AREA HEAT
EXCHANGERS,
3894 3300-25J-057
C2-3320-HX-770/771/772
C2-3320-HX-770/771/772
C2-3320-HX-770/771/772
C2-3320-HX-770/771/772
C2-3320-HX-770/771/772
CLOSED LOOP CWS
GRINDING COOLING SYSTEM
PUMPS, C2-3320-PP-765/766
3935 3300-25J-056
CLOSED LOOP CWS
GRINDING COOLING SYSTEM
PUMPS, C2-3320-PP-765/766
3936 3300-25J-056
CLOSED LOOP CWS
GRINDING COOLING SYSTEM
PUMPS, C2-3320-PP-765/766
3938 3300-25J-056
CLOSED LOOP CWS
GRINDING COOLING SYSTEM
PUMPS, C2-3320-PP-765/766
3937 3300-25J-056
CLOSED LOOP CWS
GRINDING COOLING SYSTEM
PUMPS, C2-3320-PP-765/766
3939 3300-25J-056
T1
T1
T1
LHS
P1
A-D
A,B
T1
3320
05203 B
SI
3320
05203
SDI
3320
05203 B
SE
3320
05203 B
ST
3320
05203 A
SE
3320
05203
ZSHH
A,B
LHS
3320
05208
SAL
3320
05201
HSA
3320
05204
ZSHH
A,B
RHS
3320
05216
LE
3320
05282
XA
3320
05216
LI
3320
05283
II
3320
05208
SE
3320
05204
ZAH
3320
05282
HS
3320
05281
II
3320
05215
LAH
P1
3320
05284
II
3320
05216
LIT
3320
05207
SSL 3320
05281
XA
3320
05204
ZSH
3320
05203 A
SI
3320
05283
HS
3320
05284
HS
3320
05208
SSL
3320
05203
ZAH
LHS
RHS
3320
05215
LSH
3320
05282
II
3320
05201
HSS
3320
05281
HS
3320
05284
XA
3320
05202
HSA
P1
A-D
3320
05283
XA
3320
05202
HSS
3320
05207
SE
P1
3320
05207
SAL
3320
05203 A
ST
3320
05203
ZSH
GRINDING BALLS
BALL MILL BALL TRANSFER
CONVEYOR, C2-3320-CV-034
1790 3300-25J-053
A-D
A,B
RHS
J/SP
FAULT
FAULT
NOTES:
1. BALL ADDITION RATE IS INTERMITTENT.
2. BALL BUCKETS ARE BACK-UP FOR AUTOMATED SYSTEM.
H, P2
HH, P1
L, P2
P1
A-D
LHS
DUMP TRUCK
J/SP
J/SP
H
J/SP
FAULT
RHS
H, P1
FAULT
C2-3320-ST-116
C2-3320-PP-043
V V
V
V
C2-3320-ZM-058
C2-3320-CH-044
ES
C2-3320-BN-053/054
C2-3320-CN-044
C2-3320-ST-691/692
C2-3320-CV-033
AG
KM
LT
ISSUED FOR CLIENT REVIEW
23-Dec-11
B
RP
ISSUED FOR COMBINED REVIEW
29-Jun-11
A
12/23/2011
K. MUNDY
A. GUNSON
W. BIE
L. TAMELIN
12/22/2011
4:34:39
PM
WBS: 3320
B
PIPING AND INSTRUMENTATION DIAGRAM
BALL MILL CIRCUITS
3300-25J-052
BALL STORAGE AND DISTRIBUTION SH. 1 OF 2
C2-3320-BN-050/051
C2-3320-ZM-057
ES
SIZE:
MATERIAL:
MOTOR:
C2-3320-PP-043
BALL FEEDER AREA SUBMERSIBLE PUMP
ES
SIZE:
MOTOR:
C2-3320-ZM-058
BALL MILL BALL FEEDER
SIZE: 600 t EACH OF CAPACITY
C2-3320-BN-050/051
BALL MILL BALL STORAGE BINS
SIZE:
MOTOR:
C2-3320-ZM-057
BALL MILL BALL FEEDER
SIZE: 4 t CAPACITY
C2-3320-BN-053/054
BALL BUCKETS
SIZE:
C2-3320-ST-116
HIGH LIFT CONVEYOR DISCH. CHUTE
SIZE:
MOTOR:
C2-3320-CH-044
BALL LOADING HOIST
SIZE:
C2-3320-ST-691/692
BALL FEEDER DISCHARGE CHUTE
SIZE:
MOTOR:
C2-3320-CN-044
BALL LOADING JIB CRANE MONORAIL
SIZE:
C2-3320-CV-033
HIGH LIFT CONVEYOR
D
4
F
B
A
3
2
1 5 6 8
E
7
C
REV.
APPROVED
CHK.
DES.
REV. DATE REVISION DESCRIPTION
CLIENT
LEAD ENGINEER
SCALE DRAWING NUMBER
CHECK DESIGN CHECK DRAWING
DESIGNED BY DRAWN BY
APPROVAL DATE
APPROVAL DATE
APPROVED
CHK.
DES.
REV. DATE REVISION DESCRIPTION REFERENCE DRAWING No.
1:100
0
1:200
5m
10m
0
5m
10m
15m
20m
1:500
10m
0
20m
30m
40m
50m
1:1000
0
100m
50m
1:20
0
0.5m
1m
1.5m
2m
0
1:25
0.5m
1m
1.5m
1:33
1/3
2.5m
2m
0
1m
2m
3m
0
1:50
1m
2m
3m
4m
5m
CAD FILE NAME: P:0CAD000SPEM**
MODEL UPDATED:
DWG. FILE UPDATED:
MANUAL CHANGES MADE: YES NO YES NO YES NO
PROJECT MANAGER
ENGINEERING MANAGER
AREA PROJECTENGINEER
REFERENCE DRAWINGS
SAFETY SHARE:
APPROVAL DATE
CONTRACT
NO.
SAFETY SHARE :
BA6CVA1.IGR
NOTICE: THIS DRAWING HAS NOT BEEN PUBLISHED AND IS THE SOLE
PROPERTY OF FLUOR AND IS LENT TO THE BORROWER FOR THEIR
CONFIDENTIAL USE ONLY, AND IN CONSIDERATION OF THE LOAN OF THIS
DRAWING, THE BORROWER PROMISES AND AGREES TO RETURN IT UPON
REQUEST AND AGREES THAT IT WILL NOT BE REPRODUCED, COPIED LENT
OR OTHERWISE DISPOSED OF DIRECTLY OR INDIRECTLY, NOR USED FOR
ANY OTHER PURPOSE OTHER THAN WHICH IT IS FURNISHED.
NONE
Apr 2011
240K-C2-
T8
BALL LOADING AREA SPILL
GRINDING AREA FLOOR SUMP
PUMP NO. 1, C2-3310-PP-103
3264 3300-25J-022
NOTE 1
NOTE 2
3320
05204
ZAHH
3320
05203
ZAHH
P1
P1
P2
A, B
P2
A, B
3320-SL-1015-C1B-2"-N
LHS
T4
A,B
A,B
3320
05303 B
SE
3320
05303 B
ST
3320
05303 B
SI
3320
05303
SDI
H, P1
3320
05301
HSS
A-E
3320
05301
HSA
3320
05303 A
SE
3320
05303 A
SI
3320
05303
ZAH
3320
05302
HSA
3320
05310
WE
3320
05303 A
ST
3320
05302
HSS
3320
05303
ZSHH
3320
05303
ZSH
LHS
3320
05381
HS
J/SP
3320
05381
XA
3320
05304
ZSH
3320
05304
ZAH
3320
05304
ZSHH
RHS
A,B
3320
05381
II
GRINDING BALLS
CYCLONE U/F LAUNDER,
C2-3330-LA-130
1382 3300-25J-023
GRINDING BALLS
CYCLONE U/F LAUNDER,
C2-3330-LA-430
1513 3300-25J-037
GRINDING BALLS
CYCLONE U/F LAUNDER,
C2-3330-LA-230
1473 3300-25J-027
GRINDING BALLS
HIGH LIFT CONVEYOR,
C2-3320-CV-033
1790 3300-25J-052
GRINDING BALLS
CYCLONE U/F LAUNDER,
C2-3330-LA-530
1539 3300-25J-043
GRINDING BALLS
CYCLONE U/F LAUNDER,
C2-3330-LA-330
1501 3300-25J-033
GRINDING BALLS
CYCLONE U/F LAUNDER,
C2-3330-LA-630
1566 3300-25J-047
LHS
P2
A,B
FAULT
A-E
RHS
P2
A,B
A TO ?
A-E
LHS
P1
FVNR CONV
SAFETY
INTERLOCKS
A,B
RHS
P1
A-E
RHS
C2-3320-ZM-115
C2-3320-ST-167
C2-3320-ZM-113
C2-3320-SL-027
3320
05333 A
XV
+
C2-3320-ST-265
3320
05311
XA
+
C2-3320-ST-365
C2-3320-ZM-112
C2-3320-BN-052
C2-3320-ZM-111
C2-3320-ST-565
C2-3320-ZM-114
C2-3320-ST-665
3320
05333 F
XV
+
C2-3320-ST-165
3320
05333 E
XV
+
AG
KM
LT
ISSUED FOR CLIENT REVIEW
23-Dec-11
B
RP
ISSUED FOR COMBINED REVIEW
29-Jun-11
A
12/23/2011
K. MUNDY
A. GUNSON
W. BIE
L. TAMELIN
12/21/2011
1:47:01
PM
WBS: 3320
B
PIPING AND INSTRUMENTATION DIAGRAM
BALL MILL CIRCUITS
3300-25J-053
BALL STORAGE AND DISTRIBUTION SH. 2 OF 2
C2-3320-CV-034
C2-3320-ST-465
C2-3320-ZM-116
3320
05333 D
XV
+
C2-3320-SL-028
3320
05333 B
XV
+
3320
05333 C
XV
+
SIZE:
C2-3320-CV-034
BALL MILL BALL TRANSFER CONVEYOR
SIZE:
C2-3320-SL-027
BELT SCALE 2-IDLER
SIZE:1 m3
C2-3320-BN-052
BALL MILL BALL OVERFLOW BIN
SIZE:
C2-3320-SL-028
HOOK MOUNTED WEIGHT SCALE
SIZE:
C2-3320-ST-165 TO 665
BALL MILL BALL CHUTES
SIZE:
C2-3320-ST-167
BALL MILL BALL OVERFLOW CHUTE
SIZE:
C2-3320-ZM-111 TO 116
PNEUMATIC ACTUATED BELT PLOWS
D
4
F
B
A
3
2
1 5 6 8
E
7
C
REV.
APPROVED
CHK.
DES.
REV. DATE REVISION DESCRIPTION
CLIENT
LEAD ENGINEER
SCALE DRAWING NUMBER
CHECK DESIGN CHECK DRAWING
DESIGNED BY DRAWN BY
APPROVAL DATE
APPROVAL DATE
APPROVED
CHK.
DES.
REV. DATE REVISION DESCRIPTION REFERENCE DRAWING No.
1:100
0
1:200
5m
10m
0
5m
10m
15m
20m
1:500
10m
0
20m
30m
40m
50m
1:1000
0
100m
50m
1:20
0
0.5m
1m
1.5m
2m
0
1:25
0.5m
1m
1.5m
1:33
1/3
2.5m
2m
0
1m
2m
3m
0
1:50
1m
2m
3m
4m
5m
CAD FILE NAME: P:0CAD000SPEM**
MODEL UPDATED:
DWG. FILE UPDATED:
MANUAL CHANGES MADE: YES NO YES NO YES NO
PROJECT MANAGER
ENGINEERING MANAGER
AREA PROJECTENGINEER
REFERENCE DRAWINGS
SAFETY SHARE:
APPROVAL DATE
CONTRACT
NO.
SAFETY SHARE :
BA6CVA1.IGR
NOTICE: THIS DRAWING HAS NOT BEEN PUBLISHED AND IS THE SOLE
PROPERTY OF FLUOR AND IS LENT TO THE BORROWER FOR THEIR
CONFIDENTIAL USE ONLY, AND IN CONSIDERATION OF THE LOAN OF THIS
DRAWING, THE BORROWER PROMISES AND AGREES TO RETURN IT UPON
REQUEST AND AGREES THAT IT WILL NOT BE REPRODUCED, COPIED LENT
OR OTHERWISE DISPOSED OF DIRECTLY OR INDIRECTLY, NOR USED FOR
ANY OTHER PURPOSE OTHER THAN WHICH IT IS FURNISHED.
NONE
Apr 2011
240K-C2-
L/R SEL
3320
05333
WI
3320
05333
HS
3320
05333
HS
3320
05333 A
WQI
3320
05333 B
WQI
3320
05333 C
WQI
3320
05333 D
WQI
3320
05333 E
WQI
3320
05333 F
WQI
BALL WEIGHT
BATCH PANEL
MILL 1
MILL 2
MILL 3
MILL 4
MILL 5
MILL 6
3320
05533 A
XA
3320
05533 A
ZS
OP/CL
MISMATCH
3320
05333 B
XA
3320
05333 B
ZS
OP/CL
MISMATCH
3320
05333 C
XA
3320
05333 C
ZS
OP/CL
MISMATCH
3320
05333 D
XA
3320
05333 D
ZS
OP/CL
MISMATCH
3320
05333 E
XA
3320
05333 E
ZS
OP/CL
MISMATCH
3320
05333 F
XA
3320
05333 F
ZS
OP/CL
MISMATCH
V V V V V V
V V V V V V
3320
05303
ZAHH
3320
05304
ZAHH
P1
P1
V
3320
05310
WIT
V
3200
05422
PI
3200
05401
FIT
3200
05407 B
TIT
H
3200
05408
AIT
3200
05407 B
TE
3200
05412 A
PI
3200
05409
ZS
OP/CL
3200
05412
PDI
3200
05402 B
PIT
3200
05402 A
PI
3200
05423
TI
3200
05402 A
PIT
3200
05413
TI
3200
05409
XA
MISMATCH
3200
05402 B
PI
HH
3200
05408
AE
3200
05428
AI
3200
05415
XA
MISMATCH
3200
05403
TI
3200
05426
TI
3200
05402
PDI
M
3200
05415
ZS
OP/CL
3200
05422 B
PI
HH
3200
05425
XA
MISMATCH
3200
05425
ZS
OP/CL
3200
05418
AIT
3200
05422
PDI
M
3200
05421
FI
3200
05421
FIT
3200
05411
FI
3200
05401
FI
3200
05418
AI
3200
05412 A
PIT
3200
05418
AE
3200
05408
AI
3200
05428
AIT
3200
05411
FIT
3200
05406
TI
3200
05407
TIC
3200
05412 B
PI
HH
M
3200
05422 B
PIT
3200
05412 B
PIT
3200
05416
TI
3200
05405
ZS
OP/CL
3200
05422
PIT
3200
05428
AE
3200
05405
XA
MISMATCH
H
H
H
FRESH WATER
BALL MILL NO. 1 SUMP,
C2-3310-BX-101
3295 3300-25J-022
CLOSED LOOP CWS
GRINDING COOLING SYSTEM
TANK, C2-3300-TK-765
3715 3300-25J-055
FRESH WATER
BALL MILL NO. 2 SUMP,
C2-3310-BX-201
3287 3300-25J-026
FRESH WATER
BALL MILL NO. 3 SUMP,
C2-3310-BX-301
3278 3300-25J-032
FRESH WATER
BALL MILL NO. 5 SUMP,
C2-3310-BX-501
3714 3300-25J-042
FRESH WATER
BALL MILL NO. 4 SUMP,
C2-3310-BX-401
3712 3300-25J-036
FRESH WATER
BALL MILL NO. 6 SUMP,
C2-3310-BX-601
3713 3300-25J-046
CV
TW
TW
CONV
TW
CONV
CONV
TW
SEL
TW
CV
TW
CV
TW
20"x12"
20"x16"
DRAIN
3200
05425
XV
+
DRAIN
FI
VENT
3320-WF-1477-C1A-16"-N
3200
05404
PSV
+
3300-WF- -C1A-1"-N
DRAIN
AG
KM
LT
ISSUED FOR CLIENT REVIEW
23-Dec-11
B
NOT USED
A
12/23/2011
K. MUNDY
A. GUNSON
W. BIE
L. TAMELIN
12/23/2011
8:58:46
AM
WBS: 3300
B
PIPING AND INSTRUMENTATION DIAGRAM
GRINDING
3300-25J-054
CLOSED COOLING SYSTEM SH. 1 OF 2
20"x8"
3200
05401
FE
+
3200
05407 C
TV
+
3200
05405
XV
+
DRAIN
SIZE:
MOTOR:
C2-3320-HX-771
GRINDING AREA HEAT EXCHANGER NO.2
FO
FI
3200
05407 A
TV
+
3200
05415
XV
+
3320-WF-1478-C1A-12"-N
SIZE:
MOTOR:
C2-3320-HX-772
GRINDING AREA HEAT EXCHANGER NO.3
DRAIN
3200
05409
XV
+
DRAIN
FC
3320-WF-1480-C1A-12"-N 3320-WF-1479-C1A-16"-N
DRAIN
3320-WF-1482-C1A-12"-N
PSET=
3200
05411
FE
+
3200
05421
FE
+
DRAIN
VENT
3300-WF- -C1A-8"-N
PSET=
SIZE:
MOTOR:
C2-3320-HE-770
GRINDING AREA HEAT EXCHANGER NO.1
FO
PSET=
C2-3320-HX-772
FI
DRAIN
VENT
C2-3320-HE-770
3320-WF-1481-C1A-16"-N
C2-3320-HX-771
DRAIN
3320-WF-1480-C1A-20"-N
VENT
FO
3200
05407 B
TV
+
3200
05424
PSV
+
DRAIN
3300-WF- -C1A-1"-N
DRAIN
3200
05414
PSV
+
D
4
F
B
A
3
2
1 5 6 8
E
7
C
REV.
APPROVED
CHK.
DES.
REV. DATE REVISION DESCRIPTION
CLIENT
LEAD ENGINEER
SCALE DRAWING NUMBER
CHECK DESIGN CHECK DRAWING
DESIGNED BY DRAWN BY
APPROVAL DATE
APPROVAL DATE
APPROVED
CHK.
DES.
REV. DATE REVISION DESCRIPTION REFERENCE DRAWING No.
1:100
0
1:200
5m
10m
0
5m
10m
15m
20m
1:500
10m
0
20m
30m
40m
50m
1:1000
0
100m
50m
1:20
0
0.5m
1m
1.5m
2m
0
1:25
0.5m
1m
1.5m
1:33
1/3
2.5m
2m
0
1m
2m
3m
0
1:50
1m
2m
3m
4m
5m
CAD FILE NAME: P:0CAD000SPEM**
MODEL UPDATED:
DWG. FILE UPDATED:
MANUAL CHANGES MADE: YES NO YES NO YES NO
PROJECT MANAGER
ENGINEERING MANAGER
AREA PROJECTENGINEER
REFERENCE DRAWINGS
SAFETY SHARE:
APPROVAL DATE
CONTRACT
NO.
SAFETY SHARE :
BA6CVA1.IGR
NOTICE: THIS DRAWING HAS NOT BEEN PUBLISHED AND IS THE SOLE
PROPERTY OF FLUOR AND IS LENT TO THE BORROWER FOR THEIR
CONFIDENTIAL USE ONLY, AND IN CONSIDERATION OF THE LOAN OF THIS
DRAWING, THE BORROWER PROMISES AND AGREES TO RETURN IT UPON
REQUEST AND AGREES THAT IT WILL NOT BE REPRODUCED, COPIED LENT
OR OTHERWISE DISPOSED OF DIRECTLY OR INDIRECTLY, NOR USED FOR
ANY OTHER PURPOSE OTHER THAN WHICH IT IS FURNISHED.
NONE
Apr 2011
240K-C2-
3300-WF-1479-C1A-20"-N
3320-WF-1473-C1A-16"-N
3320-WF-1475-C1A-16"-N
3320-WF-1474-C1A-16"-N
3320-WF-1476-C1A-16"-N
20"x16"
3310-WF-1484-C1A-8"-N
3310-WF-1485-C1A-8"-N
3310-WF-1486-C1A-8"-N
3310-WF-1487-C1A-8"-N
3310-WF-1488-C1A-8"-N
3310-WF-1489-C1A-8"-N
20"x16"
1"
1"
1"
3320-WF-1396-C1A-20"-N
CLOSED LOOP CWR
HEADER
3925 3300-25J-057
VENT
1"
1"
1"
1"
FRESH WATER
3025
3300-WF-1132-C1A-20"-N
1/4"
D
4
F
B
A
3
2
1 5 6 8
E
7
C
REV.
APPROVED
CHK.
DES.
REV. DATE REVISION DESCRIPTION
CLIENT
LEAD ENGINEER
SCALE DRAWING NUMBER
CHECK DESIGN CHECK DRAWING
DESIGNED BY DRAWN BY
APPROVAL DATE
APPROVAL DATE
APPROVED
CHK.
DES.
REV. DATE REVISION DESCRIPTION REFERENCE DRAWING No.
1:100
0
1:200
5m
10m
0
5m
10m
15m
20m
1:500
10m
0
20m
30m
40m
50m
1:1000
0
100m
50m
1:20
0
0.5m
1m
1.5m
2m
0
1:25
0.5m
1m
1.5m
1:33
1/3
2.5m
2m
0
1m
2m
3m
0
1:50
1m
2m
3m
4m
5m
CAD FILE NAME: P:0CAD000SPEM**
MODEL UPDATED:
DWG. FILE UPDATED:
MANUAL CHANGES MADE: YES NO YES NO YES NO
PROJECT MANAGER
ENGINEERING MANAGER
AREA PROJECTENGINEER
REFERENCE DRAWINGS
SAFETY SHARE:
APPROVAL DATE
CONTRACT
NO.
SAFETY SHARE :
BA6CVA1.IGR
NOTICE: THIS DRAWING HAS NOT BEEN PUBLISHED AND IS THE SOLE
PROPERTY OF FLUOR AND IS LENT TO THE BORROWER FOR THEIR
CONFIDENTIAL USE ONLY, AND IN CONSIDERATION OF THE LOAN OF THIS
DRAWING, THE BORROWER PROMISES AND AGREES TO RETURN IT UPON
REQUEST AND AGREES THAT IT WILL NOT BE REPRODUCED, COPIED LENT
OR OTHERWISE DISPOSED OF DIRECTLY OR INDIRECTLY, NOR USED FOR
ANY OTHER PURPOSE OTHER THAN WHICH IT IS FURNISHED.
NONE
Apr 2011
240K-C2-
AG
KM
LT
ISSUED FOR CLIENT REVIEW
23-Dec-11
B
NOT USED
A
12/23/2011
K. MUNDY
A. GUNSON
W. BIE
L. TAMELIN
12/23/2011
10:52:09
AM
WBS: 3300
B
PIPING AND INSTRUMENTATION DIAGRAM
GRINDING
3300-25J-055
CLOSED COOLING SYSTEM SH. 2 OF 2
CLOSED LOOP CWS
GRINDING AREA HEAT
EXCHANGER,
3715 3300-25J-054
DOMESTIC WATER
DISTRIBUTION
3723 5400-25J-022
C2-3320-PP-766
C2-3320-PP-765
3300
05581
II
3300
05581
XA
3300
05581
HS
FAULT
J/SP
T1
T1
3300
05582
II
3300
05582
XA
3300
05582
HS
FAULT
J/SP
3320-WF-1493-C1A-20"-N
3320-WF-1492-C1A-20"-N
3300-WF-1479-C1A-20"-N
3320-WD-1041-G1A-2"-N
3320-WF-1491-C1A-24"-N
3320-WF- -C1A-10"-N
3320-WF- -C1A-10"-N
3300
05501
LE
3300
05501
LV
+
3300
05501
LIC
3300
05501
LIT
3320-WF-1494-C1A-24"-N
3300
PCV
+
3320-WF-1492-C1A-20"-N
C2-3320-TK-765
WATER
TREATMENT
DOSING
SYSTEM
VENDOR SUPPLY
FLUOR
VENDOR
SIZE:
MATERIAL:
MOTOR:
C2-3320-PP-765
GRINDING COOLING SYSTEM PUMP NO. 1
SIZE:
MATERIAL:
MOTOR:
C2-3320-PP-766
GRINDING COOLING SYSTEM PUMP NO. 2 (STANDBY)
SIZE:
MATERIAL:
CAPACITY:
TRIM:3300-WF-1496-C1A
C2-3320-TK-765
GRINDING COOLING SYSTEM TANK
C2-3300-HX-770/771/772
16"x12"
16"x12"
3300-WF-
-C1A-16"-N
3300-RE- -S1A-1"-N
CLOSED LOOP CWS
HEADER
3863 3300-25J-056
CLOSED LOOP CWS
GRINDING COOLING SYSTEM
PUMP NO.1 & NO. 2,
3863 3300-25J-055
CLOSED LOOP CWS
PLANT AIR COMPRESSOR,
C2-3960-CO-701/702/703/707/7
3864 3900-25J-017
AG
KM
LT
ISSUED FOR CLIENT REVIEW
23-Dec-11
B
NOT USED
A
12/23/2011
K. MUNDY
A. GUNSON
W. BIE
L. TAMELIN
12/22/2011
4:37:13
PM
WBS: 3300
B
PIPING AND INSTRUMENTATION DIAGRAM
GRINDING
3300-25J-056
GRINDING COOLING WATER SUPPLY DIST.
D
4
F
B
A
3
2
1 5 6 8
E
7
C
REV.
APPROVED
CHK.
DES.
REV. DATE REVISION DESCRIPTION
CLIENT
LEAD ENGINEER
SCALE DRAWING NUMBER
CHECK DESIGN CHECK DRAWING
DESIGNED BY DRAWN BY
APPROVAL DATE
APPROVAL DATE
APPROVED
CHK.
DES.
REV. DATE REVISION DESCRIPTION REFERENCE DRAWING No.
1:100
0
1:200
5m
10m
0
5m
10m
15m
20m
1:500
10m
0
20m
30m
40m
50m
1:1000
0
100m
50m
1:20
0
0.5m
1m
1.5m
2m
0
1:25
0.5m
1m
1.5m
1:33
1/3
2.5m
2m
0
1m
2m
3m
0
1:50
1m
2m
3m
4m
5m
CAD FILE NAME: P:0CAD000SPEM**
MODEL UPDATED:
DWG. FILE UPDATED:
MANUAL CHANGES MADE: YES NO YES NO YES NO
PROJECT MANAGER
ENGINEERING MANAGER
AREA PROJECTENGINEER
REFERENCE DRAWINGS
SAFETY SHARE:
APPROVAL DATE
CONTRACT
NO.
SAFETY SHARE :
BA6CVA1.IGR
NOTICE: THIS DRAWING HAS NOT BEEN PUBLISHED AND IS THE SOLE
PROPERTY OF FLUOR AND IS LENT TO THE BORROWER FOR THEIR
CONFIDENTIAL USE ONLY, AND IN CONSIDERATION OF THE LOAN OF THIS
DRAWING, THE BORROWER PROMISES AND AGREES TO RETURN IT UPON
REQUEST AND AGREES THAT IT WILL NOT BE REPRODUCED, COPIED LENT
OR OTHERWISE DISPOSED OF DIRECTLY OR INDIRECTLY, NOR USED FOR
ANY OTHER PURPOSE OTHER THAN WHICH IT IS FURNISHED.
NONE
Apr 2011
240K-C2-
CLOSED LOOP CWS
MILL NO.5 FIXED BEARING
LUBE UNIT, C2-3320-ML-501
3930 3300-25J-044
CLOSED LOOP CWS
MILL NO.5 FLOATING BEARING
LUBE UNIT, C2-3320-ML-501
3931 3300-25J-044
CLOSED LOOP CWS
MILL NO.5 MILL MOTOR
CONTROL (NORTH),
3932 3300-25J-044
CLOSED LOOP CWS
MILL NO.5 MILL MOTOR
CONTROL (SOUTH),
3933 3300-25J-044
CLOSED LOOP CWS
MILL NO.5 CYCLOCONVERTER
CONTROL, C2-3320-ML-501
3934 3300-25J-044
CLOSED LOOP CWS
MILL NO.6 FIXED BEARING
LUBE UNIT, C2-3320-ML-601
3935 3300-25J-051
CLOSED LOOP CWS
MILL NO.6 FLOATING BEARING
LUBE UNIT, C2-3320-ML-601
3936 3300-25J-051
CLOSED LOOP CWS
MILL NO.6 MILL MOTOR
CONTROL (NORTH),
3937 3300-25J-051
CLOSED LOOP CWS
MILL NO.6 MILL MOTOR
CONTROL (SOUTH),
3938 3300-25J-051
CLOSED LOOP CWS
MILL NO.6 CYCLOCONVERTER
CONTROL, C2-3320-ML-601
3939 3300-25J-051
CLOSED LOOP CWS
MILL NO.3 CYCLOCONVERTER
COTROL, C2-3320-ML-301
3944 3300-25J-034
CLOSED LOOP CWS
MILL NO.4 FIXED BEARING
LUBE UNIT, C2-3320-ML-401
3945 3300-25J-041
CLOSED LOOP CWS
MILL NO.4 FLOATING BEARING
LUBE UNIT, C2-3320-ML-401
3946 3300-25J-041
CLOSED LOOP CWS
MILL NO.4 MILL MOTOR
CONTROL (SOUTH),
3948 3300-25J-041
CLOSED LOOP CWS
MILL NO.3 FLOATING BEARING
LUBE UNIT, C2-3320-ML-301
3941 3300-25J-034
CLOSED LOOP CWS
MILL NO.3 FIXED BEARING
LUBE UNIT, C2-3320-ML-301
3940 3300-25J-034
CLOSED LOOP CWS
MILL NO.3 MILL MOTOR
CONTROL (SOUTH),
3943 3300-25J-034
CLOSED LOOP CWS
MILL NO.4 MILL MOTOR
CONTROL (NORTH),
3947 3300-25J-041
CLOSED LOOP CWS
MILL NO.3 MILL MOTOR
CONTROL (NORTH),
3942 3300-25J-034
CLOSED LOOP CWS
MILL NO.4 CYCLOCONVERTER
CONTROL, C2-3320-ML-401
3949 3300-25J-041
CLOSED LOOP CWS
MILL NO.1 FIXED BEARING
LUBE UNIT, C2-3320-ML-101
3950 3300-25J-024
CLOSED LOOP CWS
MILL NO.2 CYCLOCONVERTER
CONTROL, C2-3320-ML-201
3959 3300-25J-031
CLOSED LOOP CWS
MILL NO.1 MILL MOTOR
CONTROL (NORTH),
3952 3300-25J-024
CLOSED LOOP CWS
MILL NO.1 FLOATING BEARING
LUBE UNIT, C2-3320-ML-101
3951 3300-25J-024
CLOSED LOOP CWS
MILL NO.1 MILL MOTOR
CONTROL (SOUTH),
3953 3300-25J-024
CLOSED LOOP CWS
MILL NO.2 MILL MOTOR
CONTROL (SOUTH),
3958 3300-25J-031
CLOSED LOOP CWS
MILL NO.1 CYCLOCONVERTER
CONTROL, C2-3320-ML-101
3954 3300-25J-024
CLOSED LOOP CWS
MILL NO.2 FIXED BEARING
LUBE UNIT, C2-3320-ML-201
3955 3300-25J-031
CLOSED LOOP CWS
MILL NO.2 FLOATING BEARING
LUBE UNIT, C2-3320-ML-201
3956 3300-25J-031
CLOSED LOOP CWS
MILL NO.2 MILL MOTOR
CONTROL (NORTH),
3957 3300-25J-031
3300-WF-1390-C1A-2"-N
3320-WF-1391-C1A-2"-N
3320-WF-1388-C1A-4"-N
3300-WF-1389-C1A-4"-N
3320-WF-1387-C1A-2"-N
3320-WF-1402-C1A-2"-N
3300-WF-1403-C1A-2"-N
3320-WF-1400-C1A-4"-N
3300-WF-1401-C1A-4"-N
3300-WF-1399-C1A-2"-N
3320-WF-1367-C1A-2"-N
3320-WF-1368-C1A-2"-N
3320-WF-1365-C1A-4"-N
3320-WF-1366-C1A-4"-N
3320-WF-1364-C1A-2"-N
3320-WF-1379-C1A-2"-N
3320-WF-1380-C1A-2"-N
3300-WF-1377-C1A-4"-N
3320-WF-1378-C1A-4"-N
3320-WF-1376-C1A-2"-N
3320-WF-1343-C1A-2"-N
3320-WF-1344-C1A-2"-N
3320-WF-1341-C1A-4"-N
3320-WF-1342-C1A-4"-N
3320-WF-1340-C1A-2"-N
3320-WF-1356-C1A-2"-N
3320-WF-1357-C1A-2"-N
3320-WF-1354-C1A-4"-N
3320-WF-1355-C1A-4"-N
3300-WF-1353-C1A-2"-N
10"x3"
3"x2"
4"x2"
8"x4"
4"x2"
8"x4" 8"x4"
4"x2"
8"x4"
4"x2"
3"x2"
10"x3"
8"x4"
4"x2"
8"x4"
4"x2"
3"x2"
10"x3"
20"x10"
3300-WF-1353-C1A-20"-N
3300-WF- -C1A-8"-N
3320-WF-1399-C1A-10"-N
3320-WF-1376-C1A-10"-N
3300-WF-1353-C1A-10"-N
C2-3320-ML-401
C2-3320-ML-401
C2-3320-ML-301
C2-3320-ML-301
C2-3320-ML-101
C2-3320-ML-101
C2-3320-ML-201
C2-3320-ML-201
C2-3320-ML-601
C2-3320-ML-601
C2-3320-ML-501
C2-3320-ML-501
08
C2-3300-PP-765/766
D
4
F
B
A
3
2
1 5 6 8
E
7
C
REV.
APPROVED
CHK.
DES.
REV. DATE REVISION DESCRIPTION
CLIENT
LEAD ENGINEER
SCALE DRAWING NUMBER
CHECK DESIGN CHECK DRAWING
DESIGNED BY DRAWN BY
APPROVAL DATE
APPROVAL DATE
APPROVED
CHK.
DES.
REV. DATE REVISION DESCRIPTION REFERENCE DRAWING No.
1:100
0
1:200
5m
10m
0
5m
10m
15m
20m
1:500
10m
0
20m
30m
40m
50m
1:1000
0
100m
50m
1:20
0
0.5m
1m
1.5m
2m
0
1:25
0.5m
1m
1.5m
1:33
1/3
2.5m
2m
0
1m
2m
3m
0
1:50
1m
2m
3m
4m
5m
CAD FILE NAME: P:0CAD000SPEM**
MODEL UPDATED:
DWG. FILE UPDATED:
MANUAL CHANGES MADE: YES NO YES NO YES NO
PROJECT MANAGER
ENGINEERING MANAGER
AREA PROJECTENGINEER
REFERENCE DRAWINGS
SAFETY SHARE:
APPROVAL DATE
CONTRACT
NO.
SAFETY SHARE :
BA6CVA1.IGR
NOTICE: THIS DRAWING HAS NOT BEEN PUBLISHED AND IS THE SOLE
PROPERTY OF FLUOR AND IS LENT TO THE BORROWER FOR THEIR
CONFIDENTIAL USE ONLY, AND IN CONSIDERATION OF THE LOAN OF THIS
DRAWING, THE BORROWER PROMISES AND AGREES TO RETURN IT UPON
REQUEST AND AGREES THAT IT WILL NOT BE REPRODUCED, COPIED LENT
OR OTHERWISE DISPOSED OF DIRECTLY OR INDIRECTLY, NOR USED FOR
ANY OTHER PURPOSE OTHER THAN WHICH IT IS FURNISHED.
NONE
Apr 2011
240K-C2-
CLOSED LOOP CWR
MILL NO.1 FIXED BEARING
LUBE UNIT, C2-3320-ML-101
3865 3300-25J-024
CLOSED LOOP CWR
MILL NO.1 FLOATING BEARING
LUBE UNIT, C2-3320-ML-101
3866 3300-25J-024
CLOSED LOOP CWR
MILL NO.1 MILL MOTOR
CONTROL (NORTH),
3867 3300-25J-024
CLOSED LOOP CWR
MILL NO.1 MILL MOTOR
CONTROL (SOUTH),
3868 3300-25J-024
CLOSED LOOP CWR
UNIT NO.1
CYCLOCONVERTER
3869 3300-25J-024
CLOSED LOOP CWR
MILL NO.1 FIXED BEARING
LUBE UNIT, C2-3320-ML-101
3870 3300-25J-031
CLOSED LOOP CWR
MILL NO.2 FLOATING BEARING
LUBE UNIT, C2-3320-ML-201
3871 3300-25J-031
CLOSED LOOP CWR
MILL NO.2 MILL MOTOR
CONTROL (NORTH),
3872 3300-25J-031
CLOSED LOOP CWR
MILL NO.2 MILL MOTOR
CONTROL (SOUTH),
3873 3300-25J-031
CLOSED LOOP CWR
UNIT NO.2
CYCLOCONVERTER
3874 3300-25J-031
CLOSED LOOP CWR
MILL NO.3 FIXED BEARING
LUBE UNIT, C2-3320-ML-301
3875 3300-25J-034
CLOSED LOOP CWR
MILL NO.3 FLOATING BEARING
LUBE UNIT, C2-3320-ML-301
3876 3300-25J-034
CLOSED LOOP CWR
MILL NO.3 MILL MOTOR
CONTROL (NORTH),
3877 3300-25J-034
CLOSED LOOP CWR
MILL NO.3 MILL MOTOR
CONTROL (SOUTH),
3878 3300-25J-034
CLOSED LOOP CWR
UNIT NO.3
CYCLOCONVERTER
3879 3300-25J-034
CLOSED LOOP CWR
MILL NO.4 FIXED BEARING
LUBE UNIT, C2-3320-ML-401
3880 3300-25J-041
CLOSED LOOP CWR
MILL NO.4 FLOATING BEARING
LUBE UNIT, C2-3320-ML-401
3881 3300-25J-041
CLOSED LOOP CWR
MILL NO.4 MILL MOTOR
CONTROL (NORTH),
3882 3300-25J-041
CLOSED LOOP CWR
MILL NO.4 MILL MOTOR
CONTROL (SOUTH),
3883 3300-25J-041
CLOSED LOOP CWR
UNIT NO.1
CYCLOCONVERTER
3884 3300-25J-041
CLOSED LOOP CWR
MILL NO.5 FIXED BEARING
LUBE UNIT, C2-3320-ML-501
3885 3300-25J-044
CLOSED LOOP CWR
MILL NO.5 FLOATING BEARING
LUBE UNIT, C2-3320-ML-501
3886 3300-25J-044
CLOSED LOOP CWR
MILL NO.5 MILL MOTOR
CONTROL (NORTH),
3887 3300-25J-044
CLOSED LOOP CWR
MILL NO.5 MILL MOTOR
CONTROL (SOUTH),
3888 3300-25J-044
CLOSED LOOP CWR
UNIT NO.5
CYCLOCONVERTER
3889 3300-25J-044
CLOSED LOOP CWR
MILL NO.6 FIXED BEARING
LUBE UNIT, C2-3320-ML-601
3890 3300-25J-051
CLOSED LOOP CWR
MILL NO.6 FLOATING BEARING
LUBE UNIT, C2-3320-ML-601
3891 3300-25J-051
CLOSED LOOP CWR
MILL NO.6 MILL MOTOR
CONTROL (NORTH),
3892 3300-25J-051
CLOSED LOOP CWR
MILL NO.6 MILL MOTOR
CONTROL (SOUTH),
3893 3300-25J-051
CLOSED LOOP CWR
UNIT NO.6
CYCLOCONVERTER
3894 3300-25J-051
3300-WF-1348-C1A-2"-N
3300-WF-1349-C1A-2"-N
3300-WF-1346-C1A-4"-N
3300-WF-1347-C1A-4"-N
3300-WF-1345-C1A-2"-N
3300-WF-1361-C1A-2"-N
3300-WF-1362-C1A-2"-N
3300-WF-1359-C1A-4"-N
3300-WF-1360-C1A-4"-N
3300-WF-1358-C1A-2"-N
4"x2"
8"x4"
4"x2"
8"x4"
3"x2"
10"x4"
3300-WF-1372-C1A-2"-N
3300-WF-1373-C1A-2"-N
3300-WF-1370-C1A-4"-N
3300-WF-1371-C1A-4"-N
3300-WF-1369-C1A-2"-N
3300-WF-1384-C1A-2"-N
3300-WF-1385-C1A-2"-N
3300-WF-1382-C1A-4"-N
3300-WF-1383-C1A-4"-N
3300-WF-1381-C1A-2"-N
4"x2"
8"x4"
4"x2"
8"x4"
3"x2"
10"x4"
3300-WF-1395-C1A-2"-N
3300-WF-1396-C1A-2"-N
3300-WF-1393-C1A-4"-N
3300-WF-1394-C1A-4"-N
3300-WF-1392-C1A-2"-N
3300-WF-1407-C1A-2"-N
3300-WF-1408-C1A-2"-N
3300-WF-1405-C1A-4"-N
3300-WF-1406-C1A-4"-N
3300-WF-1404-C1A-2"-N
4"x2"
8"x4"
4"x2"
8"x4"
3"x2"
10"x4"
C2-3320-ML-101
C2-3320-ML-101
(CONTROL), C2-3320-ML-101
C2-3320-ML-201
C2-3320-ML-201
(CONTROL), C2-3320-ML-201
C2-3320-ML-301
C2-3320-ML-301
(CONTROL), C2-3320-ML-301
C2-3320-ML-401
C2-3320-ML-401
(CONTROL), C2-3320-ML-401
C2-3320-ML-501
C2-3320-ML-501
(CONTROL), C2-3320-ML-501
C2-3320-ML-601
C2-3320-ML-601
(CONTROL), C2-3320-ML-601
20"x10"
3300-WF-1349-C1A-10"-N
3300-WF-1373-C1A-10"-N
3300-WF-1396-C1A-10"-N
CLOSED LOOP CWR
GRINDING AREA HEAT
EXCHANGER NO.1 TO NO.3,
3925 3300-25J-054
3300-WF-1386-C1A-20"-N
CLOSED LOOP CWR
PLANT AIR COMPRESSOR,
C2-3960-CO-701/702/703/707/
3926 3900-25J-017
708
3300-WF- -C1A-8"-N C2-3300-HX-770/771/772
AG
KM
LT
ISSUED FOR CLIENT REVIEW
23-Dec-11
B
NOT USED
A
12/23/2011
K. MUNDY
A. GUNSON
W. BIE
L. TAMELIN
12/23/2011
10:53:53
AM
WBS: 3300
B
PIPING AND INSTRUMENTATION DIAGRAM
GRINDING
3300-25J-057
GRINDING COOLING WATER RETURN COLLEC.
T1
T1 T1
T1
T1
T1
3410
00111
LIT
3410
00121
LIC
3410
00123
AT
3410
00103
AT 3410
00182
II
3410
00121
LIT
3410
00103
AI
3410
00102
LI
3410
00122
LIT
3410
00121
LE
3410
00101
LIC
3410
00111
LE
3410
00102
LE
3410
00101
LIT
3410
00183
II
3410
00182
XA FAULT
3410
00102
LIT
3410
00122
LI
3410
00112
LIT
3410
00183
XA FAULT
3410
00122
LE
3410
00181
XA FAULT
3410
00113
AI
3410
00112
LI
3410
00183
HS
3410
00181
II
3410
00113
AT
3410
00112
LE
3410
00181
HS
3410
00182
HS
3410
00101
LE
3410
00123
AI
3410
00111
LIC
3410
00193
HS
3410
00152
LE
3410
00152
LI
3410
00152
LIT
3410
00193
XA FAULT
3410
00192
II
3410
00141
LIC
3410
00151
LIT
3410
00151
LIC
3410
00153
AI
3410
00192
II
3410
00141
LIT
3410
00143
AT
3410
00153
AT
3410
00132
LE
3410
00131
LE
3410
00191
HS
3410
00191
II
3410
00191
XA FAULT
3410
00132
LIT
3410
00132
LI
3410
00143
AI
3410
00133
AT
3410
00133
AI 3410
00192
XA FAULT
3410
00141
LE
3410
00142
LI
3410
00131
LIT
3410
00142
LIT
3410
00131
LIC
3410
00192
HS
3410
00151
LE
3410
00142
LE
MILK OF LIME
LIME DISTRIBUTION PUMPS,
C2-3920-PP-093/094
1059 3900-25J-012
PROCESS WATER
SCAVENGER FLOTATION ROW
NO. 1
1007 3400-25J-002
PROCESS WATER
SCAVENGER FLOTATION ROW
NO. 2
1016 3400-25J-002
PH CONTROL
1381 3400-25J-042
PH CONTROL
1377 3400-25J-045
TEST REAGENT
INJECTOR, C2-3910-ZM-697
1003 3900-25J-004
PH CONTROL
1378 3400-25J-042
PRIMARY CYCLONE O/F
PARTICLE SIZE ANALYZER,
C2-330-AZ-101
1351 3300-25J-025
PRIMARY CYCLONE O/F
BALL MILL NO. 1 O/F
SAMPLER, C2-3330-SA-501
1349 3300-25J-025
MILK OF LIME
LIME DISTRIBUTION PUMPS,
C2-3920-PP-093/094
1056 3900-25J-012
TEST REAGENT
INJECTOR, C2-3910-ZM-698
1018 3900-25J-004
MILK OF LIME
LIME DISTRIBUTION PUMPS,
C2-3920-PP-093/094
1057 3900-25J-012
FROTHER ALCOHOL
INJECTOR, C2-3910-ZM-682
1019 3900-25J-006
MILK OF LIME
LIME DISTRIBUTION PUMPS,
C2-3920-PP-093/094
1058 3900-25J-012
PH CONTROL
1380 3400-25J-045
ROUGHER CONCENTRATE
ROUGHER CONCENTRATE
LAUNDER,C2-3410-LA-203
1013 3400-25J-002
ROUGHER CONCENTRATE
ROUGHER CONCENTRATE
LAUNDER, C2-3410-LA-103
1009 3400-25J-002
SCAV. CONCENTRATE
SCAVENGER CONCENTRATE
LAUNDER, C2-3410-LA-104
1008 3400-25J-002
SCAVENGER TAIL.
SCAVENGER CELL NO. 2, ROW
NO. 2, C2-3410-CF-204
1017 3400-25J-002
SCAVENGER TAIL.
SCAVENGER CELL NO. 2, ROW
NO. 1, C2-3410-CF-104
1005 3400-25J-002
PRIMARY CYCLONE O/F
PARTICLE SIZE ANALYZER,
C2-3330-AZ-101
1352 3300-25J-025
FROTHER ALCOHOL
INJECTOR, C2-3910-ZM-681
1002 3900-25J-006
SCAVENGER TAIL.
SCAVENGER CELL NO. 2, ROW
NO. 1, C2-3410-CF-104
1006 3400-25J-002
SCAV. CONCENTRATE
SCAVENGER CONCENTRATE
LAUNDER, C2-3410-LA-204
1015 3400-25J-002
PRIMARY CYCLONE O/F
BALL MILL NO.2 O/F SAMPLER,
C2-3330-SA-201
1348 3300-25J-025
SCAVENGER TAIL.
SCAVENGER CELL NO. 2, ROW
NO. 2, C2-3410-CF-204
1014 3400-25J-002
VENDOR
AIR
INTAKE
J/SP
AIR
INTAKE
VENDOR
VENDOR
VENDOR
VENDOR
AIR
INTAKE
J/SP
(LAUNDER)
VENDOR
J/SP
J/SP
J/SP
VENDOR
VENDOR
VENDOR
VENDOR
VENDOR
VENDOR
AIR
INTAKE
AIR
INTAKE
J/SP
AIR
INTAKE
VENDOR
VENDOR
VENDOR
VENDOR
(LAUNDER)
MIN MIN
MIN
MIN
MIN
MIN
MIN
MIN
AG
KM
LT
ISSUED FOR CLIENT REVIEW
22-Dec-11
B
RP
ISSUED FOR COMBINED REVIEW
29-Jun-11
A
12/22/2011
K. MUNDY
A. GUNSON
W. BIE
L. TAMELIN
12/22/2011
2:22:15
PM
WBS: 3400
B
PIPING AND INSTRUMENTATION DIAGRAM
FLOTATION
3400-25J-001
ROUGHER & SCAV ROWS 1 & 2
3410-WR-1499-C1A-1-1/2"-N
3330-SL-1031-C1A-48"-N
FC
FC
12"
3410-RL-1528-C1B-3"-N
C2-3410-LA-103
12"
C2-3410-LA-104
3430
04201 A
AV
+
3410
04508 A
AV
+
3410
00105
XV
+
3410
00104
XV
+
C2-3410-CF-102
C2-3410-ST-168
SIZE: 255 m3
MATERIAL:
MOTOR: 300.00 kW
C2-3410-CF-103
SCAVENGER FLOTATION CELL NO. 1 ROW NO. 1
1-1/2"x1/2"
3410
00111 A
LV
+
3410-WR-1518-C1A-1-1/2"-N
C2-3410-CF-103
3410-WR-1517-C1A-2"-N
C2-3410-CF-101
3"x1-1/2"
3"x1-1/2"
3410-WR-1503-C1A-1-1/2"-N
SIZE:
C2-3410-LA-103
ROUGHER CONCENTRATE LAUNDER ROW NO. 1
3410-WR-1502-C1A-2"-N
3410
00111 B
LV
+
12"
1-1/2"x1/2"
SIZE: 255 m3
MOTOR: 300.00 kW
C2-3410-CF-102
ROUGHER FLOTATION CELL NO. 2 ROW NO. 1
1-1/2"x1/2"
28"x18"
3"x1-1/2"
SIZE: 255 m3
MATERIAL:
MOTOR: 300.00 kW
C2-3410-CF-101
ROUGHER FLOTATION CELL NO. 1 ROW NO. 1
3"x1-1/2"
3930-WR-1207-C1A-3"-N
3410-SL-1093-RIB-28"-N
3410-SL-1095-R1A-18"-N
3410-WR-1498-C1A-2"-N
3410
00121 A
LV
+
3410
00121 B
LV
+
3410-WR-1525-C1A-1-1/2"-N
SIZE:
C2-3410-LA-104
SCAVENGER CONCENTRATE LAUNDER ROW NO. 1
3410
00101 B
LV
+
3410
00101 A
LV
+
3410
04508 B
AV
+
3430
04201 B
AV
+
3410
00151 B
LV
+
3410
00151 A
LV
+
3410-WR-1547-C1A-1-1/2"-N
C2-3410-LA-204
3410-WR-1531-C1A-1-1/2"-N
C2-3410-LA-203
3410-WR-1530-C1A-2"-N
3410-SL-1096-R1A-18"-N
3"x1-1/2"
3"x1-1/2"
FC
FC
3410-RL-1019-C1B-1-1/2"-N
3410-RL-1021-C1B-1-1/2"-N
3410-SL-1108-R1B-28"-N
V
V
V
28"x18"
C2-3410-CF-202
1-1/2"x1/2"
3410-SL-1094-R1B-28"-N
1-1/2"x1/2"
3930-WR-1206-C1A-3"-N
C2-3410-CF-201
3410
00131 A
LV
+
3410-WR-1543-C1A-1-1/2"-N
3410-WR-1542-C1A-2"-N
C2-3410-ST-268
3410-WR-1527-C1A-1-1/2"-N
V V
V
V
V V
V
V V
V
V
3410-SL-1798-R1B-28"-N
V
V
V
V
V
3410-RL-1020-C1B-1-1/2"-N
3410-RL-1018-C1B-1-1/2"-N
3930-WR-1206-C1A-3"-N
3410-RC-1125-C1D-1"-N
3410-RF-1032-C1D-1"-N
3410
00125
XV
+
12"
12"
1-1/2"x1/2"
3410
00131 B
LV
+
3410
00141 B
LV
+
3410
00141 A
LV
+
3410-WR-1526-C1A-2"-N
3"x1-1/2"
3"x1-1/2"
C2-3410-CF-203
12"
3410
00124
XV
+
SIZE: 255 m3
MOTOR: 300.00 kW
C2-3410-CF-201
ROUGHER FLOTATION CELL NO. 1 ROW NO. 2
SIZE: 255 m3
MOTOR: 300.00 kW
C2-3410-CF-202
ROUGHER FLOTATION CELL NO. 2 ROW NO. 2
SIZE: 255 m3
MOTOR: 300.00 kW
C2-3410-CF-203
SCAVENGER FLOTATION CELL NO. 1 ROW NO. 2
SIZE:
C2-3410-ST-268
ROUGHER CONCENTRATE DISTRIBUTION BOX NO. 2
SIZE:
C2-3410-LA-204
SCAVENGER CONCENTRATE LAUNDER ROW NO. 2
SIZE:
C2-3410-LA-203
ROUGHER CONCENTRATE LAUNDER ROW NO. 2
D
4
F
B
A
3
2
1 5 6 8
E
7
C
REV.
APPROVED
CHK.
DES.
REV. DATE REVISION DESCRIPTION
CLIENT
LEAD ENGINEER
SCALE DRAWING NUMBER
CHECK DESIGN CHECK DRAWING
DESIGNED BY DRAWN BY
APPROVAL DATE
APPROVAL DATE
APPROVED
CHK.
DES.
REV. DATE REVISION DESCRIPTION REFERENCE DRAWING No.
1:100
0
1:200
5m
10m
0
5m
10m
15m
20m
1:500
10m
0
20m
30m
40m
50m
1:1000
0
100m
50m
1:20
0
0.5m
1m
1.5m
2m
0
1:25
0.5m
1m
1.5m
1:33
1/3
2.5m
2m
0
1m
2m
3m
0
1:50
1m
2m
3m
4m
5m
CAD FILE NAME: P:0CAD000SPEM**
MODEL UPDATED:
DWG. FILE UPDATED:
MANUAL CHANGES MADE: YES NO YES NO YES NO
PROJECT MANAGER
ENGINEERING MANAGER
AREA PROJECT ENGINEER
REFERENCE DRAWINGS
SAFETY SHARE:
APPROVAL DATE
CONTRACT
NO.
SAFETY SHARE :
BA6CVA1.IGR
NOTICE: THIS DRAWING HAS NOT BEEN PUBLISHED AND IS THE SOLE
PROPERTY OF FLUOR AND IS LENT TO THE BORROWER FOR THEIR
CONFIDENTIAL USE ONLY, AND IN CONSIDERATION OF THE LOAN OF THIS
DRAWING, THE BORROWER PROMISES AND AGREES TO RETURN IT UPON
REQUEST AND AGREES THAT IT WILL NOT BE REPRODUCED, COPIED LENT
OR OTHERWISE DISPOSED OF DIRECTLY OR INDIRECTLY, NOR USED FOR
ANY OTHER PURPOSE OTHER THAN WHICH IT IS FURNISHED.
NONE
Apr 2011
240K-C2-
3400
00124
ZS
3400
00125
XA
3400
00124
XA
3400
00125
ZS
3400
00105
ZS
3400
00104
ZS
3400
00105
XA
3400
00104
XA
V
V
V
V
3930-WR-1207-C1A-3"-N
3410-RC-1124-C1D-1"-N
3410-RF-1031-C1D-1"-N
3330-SL-1032-RIB-48"-N
3330-SL-1029-RIB-4"-N
V
V
V
V V V
V
V
V
V
3410-SL-1797-RIB-28"-N
FI
FI
FI
FI
3410-WR-1528-C1A-1-1/2"-N
V
3410-WR-1500-C1A-1-1/2"-N
3410-SL-1107-R1B-28"-N
V
V
V
V
V
V
PROCESS WATER
2896 3900-25J-015
PROCESS WATER
2897 3900-25J-015
3330-SL-1030-C1B-4"-N
SIZE:
C2-3410-ST-168
ROUGHER CONCENTRATE DISTRIBUTION BOX NO.1
IMAGE
IMAGE
IMAGE
IMAGE
IMAGE
IMAGE
SCAV. CONCENTRATE
SCAV. CONC. DISTRIBUTION
BOX NO.1, C2-3410-ST-169
4092 3400-25J-002
SCAV. CONCENTRATE
SCAV. CONC. DISTRIBUTION
BOX NO.2, C2-3410-ST-269
4093 3400-25J-002
3410
00211
LIT
3410
00213
AI
3410
00223
AT
3410
00222
LI
3410
00213
AT
3410
00223
AI 3410
00232
LIT
3410
00231
LIC
3410
00203
AI
3410
00203
AT
3410
00282
II
3410
00202
LI
3410
00282
XA FAULT
3410
00202
LIT
3410
00292
II
3410
00212
LIT
3410
00212
LI
3410
00281
XA FAULT
3410
00221
LIT
3410
00281
II
3410
00221
LIC
3410
00233
AT
3410
00281
HS
3410
00282
HS
3410
00231
LE
3410
00202
LE
3410
00232
LI
3410
00291
XA FAULT
3410
00233
AI
3410
00201
LE
3410
00201
LIC
3410
00222
LE
3410
00201
LIT
3410
00292
XA FAULT
3410
00221
LE
3410
00232
LE
3410
00212
LE
3410
00231
LIT
3410
00291
HS
3410
00222
LIT
3410
00211
LE
3410
00292
HS
3410
00291
II
3410
00211
LIC
VENDOR
VENDOR
VENDOR
VENDOR
VENDOR
AIR
INTAKE
AIR
INTAKE
J/SP
J/SP
AIR
INTAKE
J/SP
AIR
INTAKE
J/SP
VENDOR
VENDOR
VENDOR
VENDOR
VENDOR
VENDOR
VENDOR
VENDOR
VENDOR
VENDOR
VENDOR
VENDOR
VENDOR
VENDOR
VENDOR
(LAUNDER)
(LAUNDER)
C2-3410-CF-204 C2-3410-CF-205
C2-3410-ST-169
C2-3410-ST-269
3410
00231 B
LV
+
3410
00211 A
LV
+
3410
00211 B
LV
+
3410
00205
XV
+
3410
00204
XV
+
3410
00221 A
LV
+
3410
00201 B
LV
+
3410
00201 A
LV
+
3410
00225
XV
+
3410
00221 B
LV
+
3410
00231 A
LV
+
C2-3410-CF-105
C2-3410-CF-104
1-1/2"x1/2"
1-1/2"x1/2"
1-1/2"x1/2"
1-1/2"x1/2"
12"
12"
12"
12"
D
4
F
B
A
3
2
1 5 6 8
E
7
C
REV.
APPROVED
CHK.
DES.
REV. DATE REVISION DESCRIPTION
CLIENT
LEAD ENGINEER
SCALE DRAWING NUMBER
CHECK DESIGN CHECK DRAWING
DESIGNED BY DRAWN BY
APPROVAL DATE
APPROVAL DATE
APPROVED
CHK.
DES.
REV. DATE REVISION DESCRIPTION REFERENCE DRAWING No.
1:100
0
1:200
5m
10m
0
5m
10m
15m
20m
1:500
10m
0
20m
30m
40m
50m
1:1000
0
100m
50m
1:20
0
0.5m
1m
1.5m
2m
0
1:25
0.5m
1m
1.5m
1:33
1/3
2.5m
2m
0
1m
2m
3m
0
1:50
1m
2m
3m
4m
5m
CAD FILE NAME: P:0CAD000SPEM**
MODEL UPDATED:
DWG. FILE UPDATED:
MANUAL CHANGES MADE: YES NO YES NO YES NO
PROJECT MANAGER
ENGINEERING MANAGER
AREA PROJECT ENGINEER
REFERENCE DRAWINGS
SAFETY SHARE:
APPROVAL DATE
CONTRACT
NO.
SAFETY SHARE :
BA6CVA1.IGR
NOTICE: THIS DRAWING HAS NOT BEEN PUBLISHED AND IS THE SOLE
PROPERTY OF FLUOR AND IS LENT TO THE BORROWER FOR THEIR
CONFIDENTIAL USE ONLY, AND IN CONSIDERATION OF THE LOAN OF THIS
DRAWING, THE BORROWER PROMISES AND AGREES TO RETURN IT UPON
REQUEST AND AGREES THAT IT WILL NOT BE REPRODUCED, COPIED LENT
OR OTHERWISE DISPOSED OF DIRECTLY OR INDIRECTLY, NOR USED FOR
ANY OTHER PURPOSE OTHER THAN WHICH IT IS FURNISHED.
NONE
Apr 2011
240K-C2-
3410
00221
XV
+
(LAUNDER)
(LAUNDER)
(LAUNDER)
(LAUNDER)
(LAUNDER)
(LAUNDER)
C2-3410-SA-103
C2-3410-SA-203
PROCESS WATER
1028 3400-25J-003
ROUGHER CONC.
ROUGHER CONCENTRATE
ROW NO.1 SAMPLER
1031 3400-25J-005
T1
SCAVENGER TAIL.
SCAV. FLOTATION CELL NO.1
ROW NO.1, C2-3410-CF-103
1006 3400-25J-001
PROCESS WATER
1007 3400-25J-001
PROCESS WATER
1030 3400-25J-003
SCAVENGER CONC.
SCAV. CONC. LAUNDER ROW
NO.1, C2-3410-LA-104
1008 3400-25J-001
SCAVENGER TAIL.
SCAV. FLOTATION CELL NO.1
ROW NO.1, C2-3410-CF-103
1005 3400-25J-001
ROUGHER CONC.
ROUGHER CONCENTRATE
ROW NO.2 SAMPLER
1023 3400-25J-005
SCAVENGER TAIL.
SCAVENGER CELL NO.4, ROW
NO.2, C2-3410-CF-206
1022 3400-25J-003
T1
SCAVENGER TAIL.
SCAVENGER CELL NO.4, ROW
NO.2, C2-3410-CF-206
1032 3400-25J-003
SCAVENGER TAIL.
SCAVENGER CELL NO. 4, ROW
NO. 1, C2-3410-CF-106
1037 3400-25J-003
SCAVENGER CONC.
SCAVENGER CONC.
LAUNDER, C2-3410-LA-204
1035 3400-25J-003
SCAVENGER TAIL.
SCAV. FLOTATION CELL NO.1
ROW NO.2, C2-3410-CF-203
1017 3400-25J-001
SCAVENGER TAIL.
SCAV. FLOTATION CELL NO.1
ROW NO.2, C2-3410-CF-203
1014 3400-25J-001
SCAVENGER CONC.
SCAVENGER CONCENTRATE
LAUNDER, C2-3410-LA-104
1034 3400-25J-003
SCAVENGER TAIL.
SCAVENGER CELL NO. 4, ROW
NO. 1, C2-3410-CF-106
1038 3400-25J-003
T1
SCAVENGER CONC.
SCAV. CONC. LAUNDER ROW
NO.2, C2-3410-LA-204
1015 3400-25J-001
ROUGHER CONC.
ROUGHER CONC. LAUNDER
ROW NO.1, C2-3410-LA-103
1009 3400-25J-001
ROUGHER CONC.
ROUGHER CONCENTRATE
LAUNDER ROW NO.2,
1013 3400-25J-001
PROCESS WATER
1016 3400-25J-001
T1
3410-SL-1097-R1B-28"-N
3930-WR-1206-C1A-3"-N
SIZE:
C2-3410-ST-169
SCAVENGER FLOTATION CONC. DIST. BOX NO.1 ROW NO.1
3410-WR-1505-C1A-1-1/2"-N
3410-SL-1096-R1A-18"-N
SIZE: 255
MATERIAL:
MOTOR: 300.00 kW
C2-3410-CF-205
SCAVENGER FLOTATION CELL NO. 3, ROW NO. 2
3930-WR-1207-C1A-3"-N
3410-WR-1532-C1A-2"-N
3410-WR-1508-C1A-1-1/2"-N
3410-SL-1098-R1A-28"-N
3410-WR-1507-C1A-1-1/2"-N
3410-WR-1533-C1A-1-1/2"-N
3930-WR-1206-C1A-3"-N
3410-WR-1536-C1A-1-1/2"-N
3930-WR-1207-C1A-3"-N
3930-SL-1095-R1A-18"-N
SIZE: 255
MATERIAL:
MOTOR: 300.00 kW
C2-3410-CF-104
SCAVENGER FLOTATION CELL NO. 2, ROW NO. 1
SIZE: 255
MATERIAL:
MOTOR: 300.00 kW
C2-3410-CF-204
SCAVENGER FLOTATION CELL NO. 2, ROW NO. 2
3410-WR-1506-C1A-2"-N
3410-WR-1504-C1A-2"-N
3410-WR-1535-C1A-1-1/2"-N
SIZE: 255
MATERIAL:
MOTOR: 300.00 kW
C2-3410-CF-105
SCAVENGER FLOTATION CELL NO. 3, ROW NO. 1
3410-WR-1534-C1A-2"-N
SIZE:
C2-3410-ST-269
SCAVENGER FLOTATION CONC. DIST. BOX NO.2 ROW NO.2
3410-WR-1549-C1A-1-1/2"-N
AG
KM
LT
ISSUED FOR CLIENT REVIEW
22-Dec-11
B
RP
ISSUED FOR COMBINED REVIEW
29-Jun-11
A
12/22/2011
K. MUNDY
A.GUNSON
W. BIE
L.TAMELIN
12/22/2011
2:34:54
PM
WBS: 3400
B
PIPING AND INSTRUMENTATION DIAGRAM
FLOTATION
3400-25J-002
SCAV ROWS 1 & 2 CELLS 2 & 3
3410
00204
ZS
3410
00205
ZS
3410
00204
XA
3410
00205
XA
3410
00221
ZS
3410
00225
ZS
3410
00221
XA
3410
00225
XA
OP/CL OP/CL
OP/CL OP/CL
MISMATCH MISMATCH
MISMATCH MISMATCH
V
V
V V
V
V
V
V
V
V V
V V
V
V
3410-SL-1099-R1B-28"-N
3410-SL-1100-R1B-28"-N
FI FI
FI FI
V V
V
V
V V V
V
V
V
V
V
V V
V
V
C2-3410-LA-203
SECONDARY COLLECTOR
INJECTOR, C2-3910-ZM-622
1386 3900-25J-002
MOLY COLLECTOR
INJECTOR, C2-3910-ZM-586
1387 3900-25J-003
SECONDARY COLLECTOR
INJECTOR, C2-3910-ZM-623
1385 3900-25J-002
3410-RC-1044-C1D-1"-N
3410-RC-1081-C1D-1"-N
3410-RC-1043-C1D-1"-N
3410-RC-1080-C1D-1"-N
IMAGE
IMAGE
IMAGE
IMAGE
MOLY COLLECTOR
INJECTOR, C2-3910-ZM-587
3802 3900-25J-003
FROTHER ALCOHOL
INJECTOR, C2-3910-ZM-689
4105 3900-25J-006
SCAV CONCENTRATE
SCAV. FLOTATION CELL NO.1
ROW NO.1, C2-3410-CF-103
4092 3400-25J-001
SCAV. CONCENTRATE
SCAV. FLOTATION CELL NO.1
ROW NO.2, C2-3410-CF-203
4093 3400-25J-001
FROTHER ALCOHOL
INJECTOR, C2-3910-ZM-690
4107 3900-25J-006
3410-SL-1798-R1B-28"-N
3410-RF- -C1D-1"-N
3410-RF-16688-C1D-1"-N
3410-SL-1797-RIB-28"-N
VENDOR
VENDOR
3410
00391
II
3410
00391
XA FAULT
3410
00322
LIT
3410
00313
AT
3410
00311
LIC
3410
00311
LIT
3410
00323
AT
3410
00322
LI
3410
00323
AI
3410
00303
AI
3410
00303
AT
3410
00332
LIT
3410
00382
II
3410
00331
LIC
3410
00392
II
3410
00302
LI
3410
00301
LIC
3410
00313
AI
3410
00301
LIT
3410
00332
LE
3410
00382
XA FAULT
3410
00302
LIT
3410
00312
LIT
3410
00312
LI
3410
00333
AT
3410
00381
XA FAULT
3410
00321
LIT
3410
00382
HS
3410
00381
II
3410
00321
LIC
3410
00333
AI
3410
00381
HS
3410
00331
LE
3410
00322
LE
3410
00302
LE
3410
00332
LI
3410
00301
LE
3410
00321
LE
3410
00391
HS
3410
00312
LE
3410
00311
LE
3410
00392
XA FAULT
3410
00392
HS
3410
00331
LIT
MIN.
MIN.
MIN.
MIN.
TO ATM
TO ATM
TO ATM
TO ATM
AIR
INTAKE
MIN.
J/SP
J/SP
MIN.
AIR
INTAKE
MIN.
J/SP
AIR
INTAKE
J/SP
VENDOR
VENDOR
VENDOR
VENDOR
MIN.
AIR
INTAKE
VENDOR
VENDOR
VENDOR
VENDOR
VENDOR
(LAUNDER)
VENDOR
(LAUNDER) (LAUNDER)
(LAUNDER)
VENDOR
VENDOR
VENDOR
VENDOR
VENDOR
VENDOR
VENDOR
VENDOR
28"x18"
1-1/2"x1/2"
1-1/2"x1/2"
C2-3410-CF-107
C2-3410-CF-106
C2-3410-CF-206 C2-3410-CF-207
1-1/2"x1/2"
1-1/2"x1/2"
28"x18"
28"x18"
12"
12"
12"
12"
28"x18"
3410
00331 A
LV
+
3410
00331 B
LV
+
3410
00311 B
LV
+
3410
00311 A
LV
+
3410
00301 A
LV
+
3410
00301 B
LV
+
3410
00321 A
LV
+
3410
00321 B
LV
+
D
4
F
B
A
3
2
1 5 6 8
E
7
C
REV.
APPROVED
CHK.
DES.
REV. DATE REVISION DESCRIPTION
CLIENT
LEAD ENGINEER
SCALE DRAWING NUMBER
CHECK DESIGN CHECK DRAWING
DESIGNED BY DRAWN BY
APPROVAL DATE
APPROVAL DATE
APPROVED
CHK.
DES.
REV. DATE REVISION DESCRIPTION REFERENCE DRAWING No.
1:100
0
1:200
5m
10m
0
5m
10m
15m
20m
1:500
10m
0
20m
30m
40m
50m
1:1000
0
100m
50m
1:20
0
0.5m
1m
1.5m
2m
0
1:25
0.5m
1m
1.5m
1:33
1/3
2.5m
2m
0
1m
2m
3m
0
1:50
1m
2m
3m
4m
5m
CAD FILE NAME: P:0CAD000SPEM**
MODEL UPDATED:
DWG. FILE UPDATED:
MANUAL CHANGES MADE: YES NO YES NO YES NO
PROJECT MANAGER
ENGINEERING MANAGER
AREA PROJECT ENGINEER
REFERENCE DRAWINGS
SAFETY SHARE:
APPROVAL DATE
CONTRACT
NO.
SAFETY SHARE :
BA6CVA1.IGR
NOTICE: THIS DRAWING HAS NOT BEEN PUBLISHED AND IS THE SOLE
PROPERTY OF FLUOR AND IS LENT TO THE BORROWER FOR THEIR
CONFIDENTIAL USE ONLY, AND IN CONSIDERATION OF THE LOAN OF THIS
DRAWING, THE BORROWER PROMISES AND AGREES TO RETURN IT UPON
REQUEST AND AGREES THAT IT WILL NOT BE REPRODUCED, COPIED LENT
OR OTHERWISE DISPOSED OF DIRECTLY OR INDIRECTLY, NOR USED FOR
ANY OTHER PURPOSE OTHER THAN WHICH IT IS FURNISHED.
NONE
Apr 2011
240K-C2-
PROCESS WATER
1028 3400-25J-002
SCAVENGER CONC.
SCAV. CONC. LAUNDER ROW
NO.1, C2-3410-LA-104
1045 3400-25J-004
SCAVENGER TAIL.
SCAVENGER CELL NO. 6 ROW
NO. 2, C2-3410-CF-208
1048 3400-25J-004
T1
SCAVENGER TAIL.
SCAV. CELL NO. 6 ROW NO. 1,
C2-3410-CF-108
1043 3400-25J-004
T1
SCAVENGER TAIL.
SCAV. FLOTATION CELL NO. 3
ROW NO. 2, C2-3410-CF-205
1022 3400-25J-002
SCAVENGER CONC.
SCAVENGER CONCENTRATE
LAUNDER, C2-3410-LA-104
1034 3400-25J-002
SCAVENGER TAIL.
SCAV. FLOTATION CELL NO. 3
ROW NO. 2, C2-3410-CF-205
1032 3400-25J-002
T1
SCAVENGER TAIL.
SCAVENGER CELL NO.5 ROW
NO.2, C2-3410-CF-207
1047 3400-25J-004
T1
SCAVENGER CONC.
SCAVENGER CONCENTRATE
LAUNDER, C2-3410-LA-204
1035 3400-25J-002
PROCESS WATER
1042 3400-25J-004
SCAVENGER CONC.
SCAV. CONC. LAUNDER ROW
NO.2, C2-3410-LA-204
1049 3400-25J-004
PROCESS WATER
1030 3400-25J-002
SCAVENGER TAIL.
SCAV. CELL NO. 6 ROW NO. 1,
C2-3410-CF-108
1044 3400-25J-004
SCAVENGER TAIL.
SCAV. FLOTATION CELL NO. 3
ROW NO. 1, C2-3410-CF-105
1037 3400-25J-002
PROCESS WATER
1046 3400-25J-004
SCAVENGER TAIL.
SCAV. FLOTATION CELL NO. 3
ROW NO. 1, C2-3410-CF-105
1038 3400-25J-002
SIZE: 255 m3
MATERIAL:
MOTOR: 300.00 kW
C2-3410-CF-206
SCAVENGER FLOTATION CELL NO. 4 ROW NO. 2
3410-WR-1514-C1A-2"-N
3410-SL-1105-R1B-28"-N
3930-WR-1207-C1A-3"-N
3410-WR-1513-C1A-1-1/2"-N
SIZE: 255 m3
MATERIAL:
MOTOR: 300.00 kW
C2-3410-CF-107
SCAVENGER FLOTATION CELL NO. 5 ROW NO. 1
3410-WR-1540-C1A-2"-N
3930-WR-1206-C1A-3"-N
3930-WR-1207-C1A-3"-N
3410-WR-1512-C1A-1-1/2"-N
SIZE: 255 m3
MATERIAL:
MOTOR: 300.00 kW
C2-3410-CF-106
SCAVENGER FLOTATION CELL NO. 4 ROW NO. 1
3410-SL-1106-R1B-28"-N
3410-WR-1537-C1A-2"-N
3410-WR-1511-C1A-1-1/2"-N
3410-WR-1538-C1A-1-1/2"-N
SIZE: 255 m3
MATERIAL:
MOTOR: 300.00 kW
C2-3410-CF-207
SCAVENGER FLOTATION CELL NO. 5 ROW NO. 2
3410-SL-1103-R1B-28"-N
3410-WR-1510-C1A-2"-N
3410-WR-1541-C1A-1-1/2"-N
3410-WR-1515-C1A-1-1/2"-N
3410-WR-1509-C1A-1-1/2"-N
3410-WR-1550-C1A-1-1/2"-N
3410-SL-1104-R1B-28"-N
3410-WR-1539-C1A-1-1/2"-N
AG
KM
LT
ISSUED FOR CLIENT REVIEW
22-Dec-11
B
RP
ISSUED FOR COMBINED REVIEW
29-Jun-11
A
12/22/2011
K. MUNDY
A. GUNSON
W. BIE
L. TAMELIN
12/21/2011
5:30:11
PM
WBS: 3400
B
PIPING AND INSTRUMENTATION DIAGRAM
FLOTATION
3400-25J-003
SCAV ROWS 1 & 2, CELLS 4 & 5
V
V
V
V
V
V
V
V
V V
V
V
V
V
V V
V V V
V
V
V
V
V
IMAGE
IMAGE
IMAGE
IMAGE
3410
00412
LI
3410
00411
LE
3410
00412
LIT
3410
00412
LE
3410
00411
LIT
3410
00482
XA FAULT
3410
00411
LIC
3410
00432
LE
3410
00413
AT
3410
00432
LI
3410
00413
AI
3410
00431
LE
3410
00492
II
3410
00433
AI
3410
00431
LIC
3410
00482
II
3410
00432
LIT
3410
00482
HS
3410
00431
LIT
3410
00492
HS
3410
00433
AT
3410
00492
XA
TO ATM
MIN.
TO ATM
MIN.
MIN.
AIR
INTAKE
VENDOR
MIN.
AIR
INTAKE
J/SP
J/SP
VENDOR
VENDOR
VENDOR
VENDOR
VENDOR
VENDOR
VENDOR
(LAUNDER)
3410
00431
LV
+
C2-3410-CF-108
C2-3410-CF-208
3410
00411
LV
+
C2-3410-SA-202
C2-3410-AZ-203
C2-3410-SA-102
C2-3410-AZ-103
12"
12"
28"x18"
1-1/2"x1/2"
28"x18"
1-1/2"x1/2"
D
4
F
B
A
3
2
1 5 6 8
E
7
C
REV.
APPROVED
CHK.
DES.
REV. DATE REVISION DESCRIPTION
CLIENT
LEAD ENGINEER
SCALE DRAWING NUMBER
CHECK DESIGN CHECK DRAWING
DESIGNED BY DRAWN BY
APPROVAL DATE
APPROVAL DATE
APPROVED
CHK.
DES.
REV. DATE REVISION DESCRIPTION REFERENCE DRAWING No.
1:100
0
1:200
5m
10m
0
5m
10m
15m
20m
1:500
10m
0
20m
30m
40m
50m
1:1000
0
100m
50m
1:20
0
0.5m
1m
1.5m
2m
0
1:25
0.5m
1m
1.5m
1:33
1/3
2.5m
2m
0
1m
2m
3m
0
1:50
1m
2m
3m
4m
5m
CAD FILE NAME: P:0CAD000SPEM**
MODEL UPDATED:
DWG. FILE UPDATED:
MANUAL CHANGES MADE: YES NO YES NO YES NO
PROJECT MANAGER
ENGINEERING MANAGER
AREA PROJECT ENGINEER
REFERENCE DRAWINGS
SAFETY SHARE:
APPROVAL DATE
CONTRACT
NO.
SAFETY SHARE :
BA6CVA1.IGR
NOTICE: THIS DRAWING HAS NOT BEEN PUBLISHED AND IS THE SOLE
PROPERTY OF FLUOR AND IS LENT TO THE BORROWER FOR THEIR
CONFIDENTIAL USE ONLY, AND IN CONSIDERATION OF THE LOAN OF THIS
DRAWING, THE BORROWER PROMISES AND AGREES TO RETURN IT UPON
REQUEST AND AGREES THAT IT WILL NOT BE REPRODUCED, COPIED LENT
OR OTHERWISE DISPOSED OF DIRECTLY OR INDIRECTLY, NOR USED FOR
ANY OTHER PURPOSE OTHER THAN WHICH IT IS FURNISHED.
NONE
Apr 2011
240K-C2-
(LAUNDER) (LAUNDER)
(LAUNDER)
SCAVENGER TAIL.
SCAV. ROW NO.1 CONC. PRIM.
SAMPLER, C2-3410-SA-104
1388 3400-25J-005
PROCESS WATER
CONCENTRATE SAMPLERS,
C2-3410-SA-103/104/203/204
1389 3400-25J-005
SCAVENGER TAIL.
SCAV. ROW NO.2 CONC. PRIM.
SAMPLER, C2-3410-SA-204
1390 3400-25J-005
SCAVENGER TAIL.
PLANT TAILING COLLECTION
LAUNDER, C2-3710-LA-001
1050 3700-25J-001
T1
SCAVENGER CONC.
SCAV. CONC. LAUNDER ROW
NO.2, C2-3410-LA-204
1049 3400-25J-003
SCAVENGER CONC.
SCAV. CONC. LAUNDER ROW
NO.1, C2-3410-LA-104
1045 3400-25J-003
PROCESS WATER
1042 3400-25J-003
T1
SCAVENGER TAIL.
SCAV. FLOTATION CELL NO. 5
ROW NO. 1, C2-3410-CF-107
1044 3400-25J-003
PROCESS WATER
1046 3400-25J-003
SCAVENGER TAIL.
SCAV. FLOTATION CELL NO. 5
ROW NO. 2, C2-3410-CF-207
1048 3400-25J-003
SCAVENGER TAIL.
SCAV. FLOTATION CELL NO. 5
ROW NO. 1, C2-3410-CF-107
1043 3400-25J-003
SCAVENGER TAIL.
PLANT TAILING COLLECTION
LAUNDER C2-3710-LA-001
1051 3700-25J-001
SCAVENGER TAIL.
SCAV. FLOTATION CELL NO. 5
ROW NO. 2, C2-3410-CF-207
1047 3400-25J-003
3410-WR-1519-C1A-1-1/2"-N
3410-WR-1520-C1A-1-1/2"-N
3930-WR-1206-C1A-3"-N
SIZE:
C2-3410-AZ-203
SCAVENGER TAILING ROW NO. 2 ANALYZER
3930-WR-1207-C1A-3"-N
SIZE: 255 m3
MATERIAL:
MOTOR: 300.00 kW
C2-3410-CF-208
SCAVENGER FLOTATION CELL NO. 6 ROW NO. 2
3410-WR-1522-C1A-1-1/2"-N
3930-WR-1206-C1A-3"-N
SIZE: 255 m3
MATERIAL:
MOTOR: 300.00 kW
C2-3410-CF-108
SCAVENGER FLOTATION CELL NO. 6 ROW NO. 1
3410-SL-1109-R1B-28"-N
3410-WR-1545-C1A-2"-N
SIZE:
C2-3410-SA-102
SCAVENGER TAILING ROW NO. 1 SAMPLER
3410-SL-1110-R1B-28"-N
3410-WR-1521-C1A-2"-N
3410-WR-1544-C1A-1-1/2"-N
3410-WR-1546-C1A-1-1/2"-N
3410-WR-1523-C1A-1-1/2"-N
3410-WR-1551-C1A-1-1/2"-N
SIZE:
C2-3410-SA-202
SCAVENGER TAILING ROW NO. 2 SAMPLER
SIZE:
C2-3410-AZ-103
SCAVENGER TAILING ROW NO. 1 ANALYZER
3410-WR-1524-C1A-1-1/2"-N
AG
KM
LT
ISSUED FOR CLIENT REVIEW
22-Dec-11
B
RP
ISSUED FOR COMBINED REVIEW
29-Jun-11
A
12/22/2011
K. MUNDY
A. GUNSON
W. BIE
L. TAMELIN
12/21/2011
5:33:08
PM
WBS: 3400
B
PIPING AND INSTRUMENTATION DIAGRAM
FLOTATION
3400-25J-004
SCAV ROWS 1 & 2 CELL 6 AND TAIL SAMPLING
3930-WR-1207-C1A-3"-N
FAULT
V
V
3410-SL-1661-R1A-48"-N
3410-SL-1662-R1A-48"-N
V
V
V V
V V V
V
IMAGE
IMAGE
3410-AA-1001-C1A-6"-N
NOTE 1
ROUGHER CONCENTRATE
ROUGHER CONC. ROW NO. 3
SAMPLER, C2-3410-SA-303
1434 3400-25J-013
ROUGHER CONCENTRATE
ROUGHER CONC. ROW NO. 4
SAMPLER, C2-3410-SA-403
1435 3400-25J-013
ROUGHER CONCENTRATE
ROUGHER CONC. ROW NO. 5
SAMPLER, C2-3410-SA-503
1436 3400-25J-021
ROUGHER CONCENTRATE
ROUGHER CONC. ROW NO. 6
SAMPLER, C2-3410-SA-603
1437 3400-25J-021
ROUGHER CONCENTRATE
ROUGHER CONC. ROW NO 3
ANALYZER, C2-3410-AZ-304
1438 3400-25J-013
ROUGHER CONCENTRATE
ROUGHER CONC. ROW NO. 4
ANALYZER, C2-3410-AZ-304
1439 3400-25J-013
ROUGHER CONCENTRATE
ROUGHER CONC. ROW NO. 5
ANALYZER, C2-3410-AZ-504
1440 3400-25J-021
ROUGHER CONCENTRATE
ROUGHER CONC. ROW NO. 6
ANALYZER, C2-3410-AZ-504
1442 3400-25J-021
SCAV. CONCENTRATE
SCAVENGER CONC. ROW NO.
3 SAMPLER, C2-3410-SA-304
1444 3400-25J-013
SCAV. CONCENTRATE
SCAVENGER CONC. ROW 4
SAMPLER, C2-3410-SA-404
1445 3400-25J-013
SCAV. CONCENTRATE
SCAVENGER CONC. ROW NO.
5 SAMPLER, C2-3410-SA-504
1446 3400-25J-021
SCAV. CONCENTRATE
SCAVENGER CONC. ROW NO.
6 SAMPLER, C2-3410-SA-604
1447 3400-25J-021
SCAV. CONCENTRATE
SCAVENGER CONC. ROW NO.
4 ANALYZER, C2-3410-AZ-304
1452 3400-25J-013
SCAV. CONCENTRATE
SCAVENGER CONC. ROW NO.
6 ANALYZER, C2-3410-AZ-504
1450 3400-25J-021
SCAV. CONCENTRATE
SCAVENGER CONC. ROW NO.
5 ANALYZER, C2-3410-AZ-504
1451 3400-25J-021
SCAV. CONCENTRATE
SCAVENGER CONC. ROW NO.
3 ANALYZER, C2-3410-AZ-304
1453 3400-25J-013
ROUGHER CONCENTRATE
ROUGHER CONCENTRATE
COLLECTION PUMPBOX,
1429 3400-25J-022
SCAV. CONCENTRATE
SCAVENGER CONCENTRATE
COLLECTION PUMPBOX,
1430 3400-25J-026
FRESH WATER
1431 5100-25J-014
SCAV. CONCENTRATE
SCAVENGER CONC. LAUNDER
ROW NO. 1, C2-3410-LA-104
1388 3400-25J-004
SCAV. CONCENTRATE
SCAVENGER CONC. LAUNDER
ROW NO. 2, C2-3410-LA-204
1390 3400-25J-004
C2-3420-BX-502
C2-3420-BX-504
SLOPE
SLOPE
SLOPE
SLOPE
SLOPE
SLOPE
VENT
VENT
FLUOR
VENDOR
NOTE 1 NOTE 1 NOTE 1
NOTES:
1. PROVISION FOR SHIFT SAMPLE
SIZE:
MATERIAL:
CAPACITY:
TRIM:
C2-3410-SA-204
SCAVENGER CONCENTRATE ROW NO. 2 SAMPLER
SIZE:
MATERIAL:
CAPACITY:
TRIM:
C2-3410-SA-203
ROUGHER CONCENTRATE ROW NO. 2 SAMPLER
SIZE:
MATERIAL:
CAPACITY:
TRIM:
C2-3410-SA-104
SCAVENGER CONCENTRATE ROW NO. 1 SAMPLER
SIZE:
MATERIAL:
CAPACITY:
TRIM:
C2-3410-SA-103
ROUGHER CONCENTRATE ROW NO. 1 SAMPLER
3410-WF-1170-C1A-2"-N
3410-SL-1095-R1A-18"-N
3410-SL-1096-R1A-18"-N
3410-SL-1146-R1A-12"-N
3410-SL-1145-R1A-12"-N
3410-SL-1178-R1A-12"-N
3410-SL-1177-R1A-12"-N
3410-SL-1150-R1A-4"-N
3410-SL-1149-R1A-4"-N
3410-SL-1180-R1A-4"-N
3410-SL-1179-R1A-4"-N
3410-WR-1206-C1A-3"-N
3410-SL- -R1A-18"-N
3410-SL- -R1A-18"-N
3410-SL-1151-R1A-18"-N
3410-SL-1152-R1A-18"-N
3410-SL-1183-R1A-18"-N
3410-SL-1184-R1A-18"-N
3410-SL-1147-R1A-4"-N
3410-SL-1148-R1A-4"-N
3410-SL-1181-R1A-4"-N
3410-SL-1182-R1A-4"-N
3410-SL-1124-R1A-24"-N
3410-SL-1123-R1A-4"-N
3410-SL-1122-R1A-4"-N
3410-SL-1119-R1A-24"-N
3410-SL-1113-R1A-18"-N
18"x16"
18"x16"
1-1/2"x1"
1-1/2"x1"
1-1/2"x1-1/2"
18"x16"
1-1/2"x1"
18"x16"
3410-SL-1120-R1A-18"-N
3410-SL-1121-R1A-18"-N
3410-SL-1112-R1A-4"-N
3410-SL-1111-R1A-4"-N
3410-SL-1114-R1A-18"-N
3410-SL-1115-R1A-6"-N
3410-SL-1116-R1A-6"-N
3410-SL-1117-R1A-6"-N
3410-SL-1118-R1A-6"-N
V
V
V
V
V
V
V
V
2"x1/2"
V
SIZE:
C2-3410-AZ-104
ROUGHER/SCAVENGER CONCENTRATE ROWS NO. 1 AND NO. 2 INSTREAM ANALYZER
C2-3410-AZ-104
C2-3410-SA-103
C2-3410-SA-203
C2-3410-SA-104
C2-3410-SA-204
3410-AA-1002-C1A-6"-N
3410-SL-1119-R1A-24"-N
24"x24"
3410-SL-1124-R1A-24"-N
D
4
F
B
A
3
2
1 5 6 8
E
7
C
REV.
APPROVED
CHK.
DES.
REV. DATE REVISION DESCRIPTION
CLIENT
LEAD ENGINEER
SCALE DRAWING NUMBER
CHECK DESIGN CHECK DRAWING
DESIGNED BY DRAWN BY
APPROVAL DATE
APPROVAL DATE
APPROVED
CHK.
DES.
REV. DATE REVISION DESCRIPTION REFERENCE DRAWING No.
1:100
0
1:200
5m
10m
0
5m
10m
15m
20m
1:500
10m
0
20m
30m
40m
50m
1:1000
0
100m
50m
1:20
0
0.5m
1m
1.5m
2m
0
1:25
0.5m
1m
1.5m
1:33
1/3
2.5m
2m
0
1m
2m
3m
0
1:50
1m
2m
3m
4m
5m
CAD FILE NAME: P:0CAD000SPEM**
MODEL UPDATED:
DWG. FILE UPDATED:
MANUAL CHANGES MADE: YES NO YES NO YES NO
PROJECT MANAGER
ENGINEERING MANAGER
AREA PROJECT ENGINEER
REFERENCE DRAWINGS
SAFETY SHARE:
APPROVAL DATE
CONTRACT
NO.
SAFETY SHARE :
BA6CVA1.IGR
NOTICE: THIS DRAWING HAS NOT BEEN PUBLISHED AND IS THE SOLE
PROPERTY OF FLUOR AND IS LENT TO THE BORROWER FOR THEIR
CONFIDENTIAL USE ONLY, AND IN CONSIDERATION OF THE LOAN OF THIS
DRAWING, THE BORROWER PROMISES AND AGREES TO RETURN IT UPON
REQUEST AND AGREES THAT IT WILL NOT BE REPRODUCED, COPIED LENT
OR OTHERWISE DISPOSED OF DIRECTLY OR INDIRECTLY, NOR USED FOR
ANY OTHER PURPOSE OTHER THAN WHICH IT IS FURNISHED.
NONE
Apr 2011
240K-C2-
AI
AG
KM
LT
ISSUED FOR CLIENT REVIEW
22-Dec-11
B
RP
ISSUED FOR COMBINED REVIEW
29-Jun-11
A
12/22/2011
K. MUNDY
A. GUNSON
W. BIE
L. TAMELIN
12/20/2011
4:43:24
PM
WBS: 3400
B
PIPING AND INSTRUMENTATION DIAGRAM
FLOTATION
3400-25J-005
CONCENTRATE SAMPLING ROWS 1 & 2
ROUGHER CONCENTRATE
ROUGHER CONC. LAUNDER
ROW NO.1, C2-3410-LA-203
1031 3400-25J-002
ROUGHER CONCENTRATE
ROUGHER CONC.LAUNDER
ROW NO.2, C2-3410-LA-203
1023 3400-25J-002
3410-WR-1556-C1A-1-1/2"-P
3410-WR-1554-C1A-1-1/2"-N
3400-WR-1553-C1A-1-1/2"-N
3410-WR-1555-C1A-1-1/2"-N
PROCESS WATER
1389 3400-25J-004
T1
T1
T1
T1
T1
T1
VENDOR
VENDOR
3410
00643
AT
3410
00622
LE
3410
00651
LIC
3410
00611
LIC
3410
00683
HS
3410
00692
XA FAULT
3410
00691
II
3410
00652
LE
3410
00641
LIC
3410
00633
AI
3410
00612
LE
3410
00613
AT
3400
00624
XA
3410
00681
II
3410
00601
LIT
3410
00643
AI
3410
00683
II
3410
00683
XA FAULT
3410
00602
LI
3410
00693
HS
3410
00693
XA FAULT
3410
00651
LE
3410
00642
LI
3410
00692
II
3410
00611
LE
3410
00613
AI
3410
00623
AI
3410
00632
LI
3410
00631
LIT
3410
00693
II
3410
00603
AI
3410
00612
LI
3410
00631
LE
3410
00621
LIC
3410
00653
AI
3410
00682
XA FAULT
3410
00611
LE
3410
00651
LIT
3410
00681
HS
3410
00682
II
3410
00691
XA FAULT
3410
00652
LI
3410
00602
LE
3410
00633
AT
3410
00612
LIT
3410
00622
LI
3410
00691
HS
3410
00632
LE
3410
00641
LE
3410
00603
AT
3410
00692
HS
3410
00642
LIT
3410
00632
LIT
3410
00601
LIC
3410
00681
XA FAULT
3410
00621
LE
3410
00622
LIT
3410
00623
AT
3400
00605
XS
3400
00605
ZS
3400
00604
ZS
3400
00604
XS
3400
00625
XA
3400
00624
ZS
3400
00625
ZS
3410
00602
LIT
3410
00641
LIT
3410
00682
HS
3410
00621
LIT
3410
00653
AT
3410
00652
LIT
3410
00631
LIC
3410
00642
LE
3410
00611
LIT
PH CONTROL
2813 3400-25J-045
PROCESS WATER
1097 3400-25J-007
SCAVENGER TAILING
SCAVENGER CELL NO.2 ROW
NO.3, C2-3410-CF-304
1098 3400-25J-007
PRIMARY CYCLONE O/F
BALL MILL NO.4 O/F SAMPLER,
C2-3330-ST-704
1106 3300-25J-035
SCAVENGER TAILING
SCAVENGER CELL NO.2 ROW
NO.3, C2-3410-CF-304
1099 3400-25J-007
MILK OF LIME
LIME DISTRIBUTION PUMPS
C2-3920-PP-093/094
1393 3900-25J-012
SCAV. CONCENTRATE
SCAVENGER CONCENTRATE
LAUNDER, C2-3410-LA-404
1100 3400-25J-007
TEST REAGENT
INJECTOR, C2-3910-ZM-699
1111 3900-25J-004
PRIMARY CYCLONE O/F
PARTICLE SIZE ANALYZER,
C2-3330-AZ-301
1105 3300-25J-035
MILK OF LIME
LIME DISTRIBUTION PUMPS
C2-3920-PP-093/094
1392 3900-25J-012
FROTHER ALCOHOL
INJECTOR, C2-3910-ZM-683
1107 3900-25J-006
TEST REAGENT
INJECTOR, C2-3910-ZM-700
1114 3900-25J-004
PRIMARY CYCLONE O/F
BALL MILL NO.3 O/F SAMPLER,
C2-3330-SA-301
1103 3300-25J-035
PROCESS WATER
1108 3400-25J-007
FROTHER ALCOHOL
INJECTOR, C2-3910-ZM-684
1110 3900-25J-006
SCAVENGER TAILING
SCAVENGER CELL NO.2 ROW
NO.4, C2-3410-CF-404
1113 3400-25J-007
SCAV. CONCENTRATE
SCAVENGER CONCENTRATE
LAUNDER, C2-3410-LA-304
1115 3400-25J-007
PH CONTROL
1395 3400-25J-042
SCAVENGER TAILING
SCAVENGER CELL NO.2 ROW
NO.4, C2-3410-CF-404
1102 3400-25J-007
ROUGHER CONCENTRATE
ROUGHER CONCENTRATE
LAUNDER,C2-3410-LA-303
1116 3400-25J-007
PRIMARY CYCLONE O/F
PARTICLE ANALYZER,
C2-3330-AZ-301
1104 3300-25J-035
ROUGHER CONCENTRATE
ROUGHER CONCENTRATE
LAUNDER, C2-3410-LA-403
1109 3400-25J-007
(LAUNDER)
VENDOR
VENDOR
VENDOR
VENDOR
VENDOR
J/SP
AIR
INTAKE
VENDOR
AIR
INTAKE
J/SP
AIR
INTAKE
VENDOR
AIR
INTAKE
VENDOR
AIR
INTAKE
J/SP
AIR
INTAKE
J/SP
VENDOR
(LAUNDER)
VENDOR
J/SP
VENDOR
J/SP
VENDOR
VENDOR
VENDOR
MIN
MIN
MIN
MIN
MIN
MIN
MIN
MIN
3410-WR-1584-C1A-2"-N
1-1/2"x1/2"
3410
00624
XV
+
3410
00651 A
LV
+
3410-WR-1588-C1A-2"-N
3"x1-1/2"
1-1/2"x1/2"
3430
04201 C
AV
+
3410-SL-1125-R1B-28"-N
3410-WR-1561-C1A-2"-N
C2-3410-CF-401
C2-3410-CF-301
C2-3410-CF-403
3410-SL-1128-R1A-18"-N
3410
00625
XV
+
3410-WR-1585-C1A-1-1/2"-N
12"
C2-3410-LA-304
3930-WR-1575-C1A-3"-N
1-1/2"x1/2"
3"x1-1/2"
3410
00604
XV
+
1-1/2"x1/2"
3410-WR-1605-C1A-1-1/2"-N
C2-3410-LA-404
12"
3410-WR-1600-C1A-2"-N
C2-3410-LA-403
3410-SL-1126-R1B-28"-N
12"
3"x1-1/2"
3410-WR-1583-C1A-1-1/2"-N
3410
00601 A
LV
+
3410
00605
XV
+
C2-3410-LA-303
3930-WR-1204-C1A-3"-N
12"
12"
3410
00631 A
LV
+
3"x1-1/2"
3410-SL-1127-R1A-18"-N
C2-3410-CF-303
3410
00631 B
LV
+
3410
04508 C
AV
+
3410
00611 A
LV
+
3410-WR-1575-C1A-2"-N
C2-3410-CF-402
3410
00621 A
LV
+
12"
C2-3410-ST-368
3410-WR-1601-C1A-1-1/2"-N
3410-WR-1557-C1A-2"-N
3410
00641 B
LV
+
3410-WR-1576-C1A-1-1/2"-N
SIZE: 255 m3
MATERIAL:
MOTOR: 300.00 kW
C2-3410-CF-301
ROUGHER FLOTATION CELL NO.1 ROW NO.3
3410-WR-1559-C1A-1-1/2"-N
3410-WR-1589-C1A-1-1/2"-N
SIZE:
C2-3410-LA-404
SCAVENGER CONCENTRATE LAUNDER ROW NO.4
1-1/2"x1/2"
SIZE:
C2-3410-LA-304
SCAVENGER CONCENTRATE LAUNDER ROW NO.3
3410
00601 B
LV
+
3410
00641 A
LV
+
C2-3410-CF-302
C2-3410-ST-468
3410-WR-1562-C1A-1-1/2"-N
SIZE: 255 m3
MOTOR: 300.00 kW
C2-3410-CF-403
SCAVENGER FLOTATION CELL NO.1 ROW NO.4
SIZE:
C2-3410-LA-403
ROUGHER CONCENTRATE LAUNDER ROW NO.4
3410
00611 B
LV
+
SIZE:
C2-3410-ST-468
ROUGHER FLOTATION CONC. DIST. BOX NO.4 ROW NO.4
28"x18"
SIZE: 255 m3
MOTOR: 300.00 kW
C2-3410-CF-401
ROUGHER FLOTATION CELL NO.1 ROW NO.4
28"x18"
3410-WR-1586-C1A-1-1/2"-N
3410-WR-1558-C1A-1-1/2"-N
3410
00651 B
LV
+
SIZE: 255 m3
MOTOR: 300.00 kW
C2-3410-CF-402
ROUGHER FLOTATION CELL NO.2 ROW NO.4
SIZE: 255 m3
MOTOR: 300.00 kW
C2-3410-CF-302
ROUGHER FLOTATION CELL NO.2 ROW NO.3
1-1/2"x1/2"
SIZE: 255 m3
MATERIAL:
MOTOR: 300.00 kW
C2-3410-CF-303
SCAVENGER FLOTATION CELL NO.1 ROW NO.3
3330-SL-16667-C1B-4"-N
3330-SL-16666-C1A-48"-N
3410-RF-1033-C1A-1"-N
3410-RC-1126-C1D-1"-N
3930-WR-1575-C1A-3"-N
SIZE:
C2-3410-LA-303
ROUGHER CONCENTRATE LAUNDER ROW NO.3
3410
00621 B
LV
+
AG
KM
LT
ISSUED FOR CLIENT REVIEW
22-Dec-11
B
RP
ISSUED FOR COMBINED REVIEW
29-Jun-11
A
12/22/2011
K. MUNDY
A. GUNSON
W. BIE
L. TAMELIN
12/21/2011
5:35:00
PM
WBS: 3400
B
PIPING AND INSTRUMENTATION DIAGRAM
FLOTATION
3400-25J-006
ROUGHER & SCAV ROWS 3 & 4
3410-RC-1127-C1D-1"-N
3410-RF-1034-C1D-1"-N
3330-SL-1084-RIB-48"-N
3330-SL-1054-CIB-4"-N
V
V V
V
V
V
3410-SL-1137-R1B-28"-N
V V
V
V
V
V
V
V
3410-SL-1159-R1B-28"-N
FC
FC
3410-RL-1017-C1B-1-1/2"-N
3410-RL-1016-C1B-1-1/2"-N
V
V V
V
V
V
V V V
V
V
V
V
V
3410-SL-1138-R1B-28"-N
V V
V
V
V
V
3410-SL-1160-R1B-28"-N
V V V
V
V
V
D
4
F
B
A
3
2
1 5 6 8
E
7
C
REV.
APPROVED
CHK.
DES.
REV. DATE REVISION DESCRIPTION
CLIENT
LEAD ENGINEER
SCALE DRAWING NUMBER
CHECK DESIGN CHECK DRAWING
DESIGNED BY DRAWN BY
APPROVAL DATE
APPROVAL DATE
APPROVED
CHK.
DES.
REV. DATE REVISION DESCRIPTION REFERENCE DRAWING No.
1:100
0
1:200
5m
10m
0
5m
10m
15m
20m
1:500
10m
0
20m
30m
40m
50m
1:1000
0
100m
50m
1:20
0
0.5m
1m
1.5m
2m
0
1:25
0.5m
1m
1.5m
1:33
1/3
2.5m
2m
0
1m
2m
3m
0
1:50
1m
2m
3m
4m
5m
CAD FILE NAME: P:0CAD000SPEM**
MODEL UPDATED:
DWG. FILE UPDATED:
MANUAL CHANGES MADE: YES NO YES NO YES NO
PROJECT MANAGER
ENGINEERING MANAGER
AREA PROJECT ENGINEER
REFERENCE DRAWINGS
SAFETY SHARE:
APPROVAL DATE
CONTRACT
NO.
SAFETY SHARE :
BA6CVA1.IGR
NOTICE: THIS DRAWING HAS NOT BEEN PUBLISHED AND IS THE SOLE
PROPERTY OF FLUOR AND IS LENT TO THE BORROWER FOR THEIR
CONFIDENTIAL USE ONLY, AND IN CONSIDERATION OF THE LOAN OF THIS
DRAWING, THE BORROWER PROMISES AND AGREES TO RETURN IT UPON
REQUEST AND AGREES THAT IT WILL NOT BE REPRODUCED, COPIED LENT
OR OTHERWISE DISPOSED OF DIRECTLY OR INDIRECTLY, NOR USED FOR
ANY OTHER PURPOSE OTHER THAN WHICH IT IS FURNISHED.
NONE
Apr 2011
240K-C2-
FI FI
FI FI
3930-WR-1204-C1A-3"-N
PROCESS WATER
2894 3900-25J-015
PROCESS WATER
2895 3900-25J-015
IMAGE
IMAGE
IMAGE
IMAGE
IMAGE
IMAGE
SIZE:
C2-3410-ST-368
ROUGHER FLOTATION CONC. DIST. BOX NO.4 ROW NO.4
SCAV. CONCENTRATE
SCAV. CONC. DISTRIBUTION
BOX NO.3, C2-3410-ST-369
4099 3400-25J-007
SCAV. CONCENTRATE
SCAV. CONC. DISTRIBUTION
BOX NO.4, C2-3410-ST-469
4100 3400-25J-007
3410
00702
LIT
3410
00731
LIC
3410
00722
LE
3410
00732
LIT
3410
00782
XA FAULT
3410
00701
LIC
3410
00702
LI
3410
00701
LE
3410
00733
AI
3410
00711
LIC
3410
00791
XA FAULT
3410
00782
II
3410
00732
LI
3410
00703
AT
3410
00702
LE
3410
00791
II
3410
00703
AI
3410
00731
LE
3410
00792
HS
3410
00782
HS
3410
00711
LE
3410
00781
HS
3410
00723
AI
3410
00733
AT
3410
00713
AT
3410
00721
LIC
3410
00722
LI
3410
00723
AT
3410
00713
AI
3410
00722
LIT
3410
00791
HS
3410
00711
LIT
3410
00781
II
3410
00731
LIT
3410
00721
LIT
3410
00712
LE
3410
00732
LE
3410
00781
XA FAULT
3410
00721
LE
3410
00712
LI
3410
00712
LIT
3410
00792
XA FAULT
3410
00792
II
3410
00701
LIT
VENDOR
VENDOR
VENDOR
J/SP
AIR
INTAKE
J/SP
AIR
INTAKE
(LAUNDER)
(LAUNDER)
VENDOR
J/SP
VENDOR
VENDOR
J/SP
VENDOR
AIR
INTAKE
VENDOR
AIR
INTAKE
VENDOR
VENDOR
VENDOR
VENDOR
VENDOR
VENDOR
VENDOR
VENDOR
VENDOR
VENDOR
VENDOR
12"
1-1/2"x1/2"
1-1/2"x1/2"
C2-3410-CF-405
C2-3410-CF-404
C2-3410-CF-304 C2-3410-CF-305
3410
00725
XV
+
3410
00724
XV
+
3410
00701 A
LV
+
3410
00701 B
LV
+
3410
00704
XV
+
3410
00705
XV
+
12"
12"
12"
C2-3410-ST-469
1-1/2"x1/2"
C2-3410-ST-369
1-1/2"x1/2"
D
4
F
B
A
3
2
1 5 6 8
E
7
C
REV.
APPROVED
CHK.
DES.
REV. DATE REVISION DESCRIPTION
CLIENT
LEAD ENGINEER
SCALE DRAWING NUMBER
CHECK DESIGN CHECK DRAWING
DESIGNED BY DRAWN BY
APPROVAL DATE
APPROVAL DATE
APPROVED
CHK.
DES.
REV. DATE REVISION DESCRIPTION REFERENCE DRAWING No.
1:100
0
1:200
5m
10m
0
5m
10m
15m
20m
1:500
10m
0
20m
30m
40m
50m
1:1000
0
100m
50m
1:20
0
0.5m
1m
1.5m
2m
0
1:25
0.5m
1m
1.5m
1:33
1/3
2.5m
2m
0
1m
2m
3m
0
1:50
1m
2m
3m
4m
5m
CAD FILE NAME: P:0CAD000SPEM**
MODEL UPDATED:
DWG. FILE UPDATED:
MANUAL CHANGES MADE: YES NO YES NO YES NO
PROJECT MANAGER
ENGINEERING MANAGER
AREA PROJECT ENGINEER
REFERENCE DRAWINGS
SAFETY SHARE:
APPROVAL DATE
CONTRACT
NO.
SAFETY SHARE :
BA6CVA1.IGR
NOTICE: THIS DRAWING HAS NOT BEEN PUBLISHED AND IS THE SOLE
PROPERTY OF FLUOR AND IS LENT TO THE BORROWER FOR THEIR
CONFIDENTIAL USE ONLY, AND IN CONSIDERATION OF THE LOAN OF THIS
DRAWING, THE BORROWER PROMISES AND AGREES TO RETURN IT UPON
REQUEST AND AGREES THAT IT WILL NOT BE REPRODUCED, COPIED LENT
OR OTHERWISE DISPOSED OF DIRECTLY OR INDIRECTLY, NOR USED FOR
ANY OTHER PURPOSE OTHER THAN WHICH IT IS FURNISHED.
NONE
Apr 2011
240K-C2-
(LAUNDER)
(LAUNDER)
(LAUNDER)
(LAUNDER)
(LAUNDER)
(LAUNDER)
PROCESS WATER
1097 3400-25J-006
SCAVENGER TAILING
SCAVENGER FLOTATION
CELL NO.1 ROW NO.3
1099 3400-25J-006
SCAVENGER TAILING
SCAVENGER FLOTATION
CELL NO.1 ROW NO.3
1098 3400-25J-006
SCAV. CONCENTRATE
SCAV. CONC. LAUNDER ROW
NO.3, C2-3410-LA-304
1115 3400-25J-006
ROUGHER CONCENTRATE
ROUGHER CONC. LAUNDER
ROW NO. 2, C2-3410-LA-303
1116 3400-25J-006
PROCESS WATER
1108 3400-25J-006
SCAVENGER TAILING
SCAV. FLOTATION CELL NO.1
ROW NO.4, C2-3410-CF-403
1102 3400-25J-006
SCAVENGER TAILING
SCAV. FLOTATION CELL NO.1
ROW NO.4, C2-3410-CF-403
1113 3400-25J-006
SCAV. CONCENTRATE
SCAVENGER CONCENTRATE
LAUNDER ROW NO. 4
1100 3400-25J-006
ROUGHER CONCENTRATE
ROUGHER CONC. LAUNDER
ROW NO. 4 C2-3410-LA-403
1109 3400-25J-006
C2-3410-SA-403
PROCESS WATER
1203 3400-25J-011
SCAVENGER TAILING
SCAVENGER CELL NO.4 ROW
NO.3, C2-3410-CF-306
1204 3400-25J-011
SCAVENGER TAILING
SCAVENGER CELL NO.4, ROW
NO.4, C2-3410-CF-406
1211 3400-25J-011
SCAVENGER TAILING
SCAVENGER CELL NO.4 ROW
NO.3, C2-3410-CF-306
1205 3400-25J-011
T1
SCAV. CONCENTRATE
SCAVENGER CONCENTRATE
LAUNDER, C2-3410-LA-304
1208 3400-25J-011
SCAVENGER TAILING
SCAVENGER CELL NO.4, ROW
NO.4, C2-3410-CF-406
1200 3400-25J-011
ROUGHER CONCENTRATE
ROUGHER CONCENTRATE
ROW NO.4 SAMPLER
1209 3400-25J-013
PROCESS WATER
C2-3410-SA-303
1201 3400-25J-011
T1
SCAV. CONCENTRATE
SCAVENGER CONC.
LAUNDER, C2-3410-LA-404
1207 3400-25J-011
T1
T1
SIZE:
C2-3410-ST-369
SCAVENGER FLOTATION CONC. DIST. BOX NO.3 ROW NO.3
SIZE: 255 m3
MATERIAL:
MOTOR: 300.00 kW
C2-3410-CF-304
SCAVENGER FLOTATION CELL NO.2 ROW NO.3
3410-SL-1130-R1B-28"-N
3930-WR-1205-C1A-3"-N
3410-SL-1128-R1A-18"-N
3410-SL-1129-R1B-28"-N
3410-WR-1563-C1A-1-1/2"-N
3410-WR-1590-C1A-2"-N
3930-WR-1204-C1A-3"-N
3930-WR-1204-C1A-3"-N
3410-WR-1594-C1A-3"-N
3410-WR-1591-C1A-1-1/2"-N
3410-WR-1592-C1A-2"-N
SIZE: 255 m3
MATERIAL:
MOTOR: 300.00 kW
C2-3410-CF-404
SCAVENGER FLOTATION CELL NO.2 ROW NO.4
SIZE: 255 m3
MATERIAL:
MOTOR: 300.00 kW
C2-3410-CF-405
SCAVENGER FLOTATION CELL NO.3 ROW NO.4
3410-WR-1566-C1A-1-1/2"-N
3410-WR-2006-C1A-2"-N
3930-WR-1205-C1A-3"-N
SIZE: 255 m3
MATERIAL:
MOTOR: 300.00 kW
C2-3410-CF-305
SCAVENGER FLOTATION CELL NO.3 ROW NO.3
3410-WR-1564-C1A-2"-N
3410-WR-1593-C1A-1-1/2"-N
3410-WR-1607-C1A-3"-N
3410-WR-1565-C1A-1-1/2"-N
3410-SL-1127-R1A-18"-N
SIZE:
C2-3410-ST-469
SCAVENGER FLOTATION CONC. DIST. BOX NO.4 ROW NO.4
AG
KM
LT
ISSUED FOR CLIENT REVIEW
22-Dec-11
B
RP
ISSUED FOR COMBINED REVIEW
29-Jun-11
A
12/22/2011
K. MUNDY
A. GUNSON
W. BIE
L. TAMELIN
12/22/2011
2:45:49
PM
WBS: 3400
B
PIPING AND INSTRUMENTATION DIAGRAM
FLOTATION
3400-25J-007
SCAV ROWS 3 & 4 CELLS 2 & 3
3410
00711 B
LV
+
3410
00711 A
LV
+
3410
00731 B
LV
+
3410
00731 A
LV
+
3410
00721 B
LV
+
3410
00721 A
LV
+
3410
00724
ZS
3410
00725
ZS
3410
00705
ZS
3410
00704
ZS
3410
00704
XA
3410
00705
XA
OP/CL OP/CL
3410
00724
XA
3410
00725
XA
OP/CL
OP/CL
MISMATCH
MISMATCH
MISMATCH MISMATCH
V
V
V V
V V
V
V
V
V
V V
V
V V
V
3410-SL-1131-R1B-28"-N
ROUGHER CONCENTRATE
ROUGHER CONC. LAUNDER
ROW NO. 3, C2-3410-LA-303
1206 3400-25J-013
FI FI
FI FI
V
V
V
V
V
V
V V
V
V
V
V
V
V
V V
3410-SL-1132-R1B-28"-N
C2-3410-LA-404
MOLY COLLECTOR
INJECTOR, C2-3910-ZM-579
1399 3900-25J-003
SECONDARY COLLECTOR
INJECTOR, C2-3910-ZM-626
1799 3900-25J-002
3410-RC-1046-C1D-1"-N
3410-RC-1083-C1D-1"-N
3410-RC-1045-C1D-1"-N
3410-RC-1082-C1D-1"-N
SECONDARY COLLECTOR
INJECTOR, C2-3910-ZM-624
3797 3900-25J-002
MOLY COLLECTOR
INJECTOR, C2-3910-ZM-588
3803 3900-25J-003
FROTHER ALCOHOL
INJECTOR, C2-3910-ZM-743
4101
SCAV. CONCENTRATE
SCAVENGER FLOTATION
CELL NO.1 ROW NO.3
4099 3400-25J-006
3400-SL-1159-R1B-28"-N
3400-RE- -C1O-1"-N
FROTHER ALCOHOL
INJECTOR, C2-3910-ZM-744
4102 3900-25J-006
3400-RF- -C1D-1"-N
SCAV. CONCENTRATE
SCAV. FLOTATION CELL NO.1
ROW NO.4, C2-3410-CF-403
4100 3400-25J-006
3410-SL-1160-R1B-28"-N
IMAGE
IMAGE
IMAGE
IMAGE
D
4
F
B
A
3
2
1 5 6 8
E
7
C
REV.
APPROVED
CHK.
DES.
REV. DATE REVISION DESCRIPTION
CLIENT
LEAD ENGINEER
SCALE DRAWING NUMBER
CHECK DESIGN CHECK DRAWING
DESIGNED BY DRAWN BY
APPROVAL DATE
APPROVAL DATE
APPROVED
CHK.
DES.
REV. DATE REVISION DESCRIPTION REFERENCE DRAWING No.
1:100
0
1:200
5m
10m
0
5m
10m
15m
20m
1:500
10m
0
20m
30m
40m
50m
1:1000
0
100m
50m
1:20
0
0.5m
1m
1.5m
2m
0
1:25
0.5m
1m
1.5m
1:33
1/3
2.5m
2m
0
1m
2m
3m
0
1:50
1m
2m
3m
4m
5m
CAD FILE NAME: P:0CAD000SPEM**
MODEL UPDATED:
DWG. FILE UPDATED:
MANUAL CHANGES MADE: YES NO YES NO YES NO
PROJECT MANAGER
ENGINEERING MANAGER
AREA PROJECT ENGINEER
REFERENCE DRAWINGS
SAFETY SHARE:
APPROVAL DATE
CONTRACT
NO.
SAFETY SHARE :
BA6CVA1.IGR
NOTICE: THIS DRAWING HAS NOT BEEN PUBLISHED AND IS THE SOLE
PROPERTY OF FLUOR AND IS LENT TO THE BORROWER FOR THEIR
CONFIDENTIAL USE ONLY, AND IN CONSIDERATION OF THE LOAN OF THIS
DRAWING, THE BORROWER PROMISES AND AGREES TO RETURN IT UPON
REQUEST AND AGREES THAT IT WILL NOT BE REPRODUCED, COPIED LENT
OR OTHERWISE DISPOSED OF DIRECTLY OR INDIRECTLY, NOR USED FOR
ANY OTHER PURPOSE OTHER THAN WHICH IT IS FURNISHED.
NONE
Apr 2011
240K-C2-
VENDOR
VENDOR
3410
01191
II
3410
01191
XA FAULT
3410
01122
LIT
3410
01113
AT
3410
01111
LIC
3410
01111
LIT
3410
01123
AT
3410
01122
LI
3410
01123
AI
3410
01103
AI
3410
01103
AT
3410
01132
LIT
3410
01182
II
3410
01131
LIC
3410
01192
II
3410
01102
LI
3410
01101
LIC
3410
01113
AI
3410
01101
LIT
3410
01132
LE
3410
01182
XA FAULT
3410
01102
LIT
3410
01112
LIT
3410
01112
LI
3410
01133
AT
3410
01181
XA FAULT
3410
01121
LIT
3410
01182
HS
3410
01181
II
3410
01121
LIC
3410
01133
AI
3410
01181
HS
3410
01131
LE
3410
01122
LE
3410
01102
LE
3410
01132
LI
3410
01101
LE
3410
01121
LE
3410
01191
HS
3410
01112
LE
3410
01111
LE
3410
01192
XA FAULT
3410
01192
HS
3410
01131
LIT
MIN.
MIN.
MIN.
MIN.
TO ATM
TO ATM
TO ATM
TO ATM
AIR
INTAKE
MIN.
J/SP
J/SP
MIN.
AIR
INTAKE
MIN.
J/SP
AIR
INTAKE
J/SP
VENDOR
VENDOR
VENDOR
VENDOR
MIN.
AIR
INTAKE
VENDOR
VENDOR
VENDOR
VENDOR
VENDOR
(LAUNDER)
VENDOR
(LAUNDER) (LAUNDER)
(LAUNDER)
VENDOR
VENDOR
VENDOR
VENDOR
VENDOR
VENDOR
VENDOR
VENDOR
28"x18"
1-1/2"x1/2"
1-1/2"x1/2"
C2-3410-CF-307
C2-3410-CF-306
C2-3410-CF-406 C2-3410-CF-407
1-1/2"x1/2"
1-1/2"x1/2"
28"x18"
28"x18"
12"
12"
12"
12"
28"x18"
3410
01131 A
LV
+
3410
01131 B
LV
+
3410
01111 B
LV
+
3410
01111 A
LV
+
3410
01101 A
LV
+
3410
01101 B
LV
+
3410
01121 A
LV
+
3410
01121 B
LV
+
PROCESS WATER
1203 3400-25J-007
SCAVENGER TAILING
SCAV. FLOTATION CELL NO.3
ROW NO.3, C2-3410-CF-305
1205 3400-25J-007
SCAVENGER TAILING
SCAV. FLOTATION CELL NO.3
ROW NO.3, C2-3410-CF-305
1204 3400-25J-007
SCAV. CONCENTRATE
SCAV. CONC. LAUNDER,
C2-3410-LA-304
1208 3400-25J-007
PROCESS WATER
1201 3400-25J-007
SCAVENGER TAILING
SCAV. FLOTATION CELL NO.3
ROW NO.4, C2-3410-CF-405
1211 3400-25J-007
SCAVENGER TAILING
SCAV. FLOTATION CELL NO.3
ROW NO.4, C2-3410-CF-405
1200 3400-25J-007
SCAV. CONCENTRATE
SCAV. CONC. LAUNDER,
C2-3410-LA-404
1207 3400-25J-007
SCAVENGER TAILING
SCAV. CELL NO.6 ROW NO.3,
C2-3410-CF-308
1169 3400-25J-012
T1
SCAVENGER TAILING
SCAV. CELL NO.6 ROW NO.4,
C2-3410-CF-408
1178 3400-25J-012
T1
SCAVENGER TAILING
SCAV. CELL NO.6 ROW NO.3,
C2-3410-CF-308
1170 3400-25J-012
SCAVENGER TAILING
SCAV. CELL NO.6 ROW NO.4,
C2-3410-CF-408
1179 3400-25J-012
SCAV. CONCENTRATE
SCAV. CONC. LAUNDER ROW
NO.3, C2-3410-LA-304
1181 3400-25J-012
T1 T1
PROCESS WATER
1176 3400-25J-012
PROCESS WATER
1180 3400-25J-012
SCAV. CONCENTRATE
SCAV. CONC. LAUNDER ROW
NO.4, C2-3410-LA-404
1177 3400-25J-012
3930-WR-1205-C1A-3"-N
3410-SL-1135-R1B-28"-N
3410-WR-1569-C1A-1-1/2"-N
3410-SL-1136-R1B-28"-N
3410-WR-1597-C1A-1-1/2"-N
3410-WR-1573-C1A-1-1/2"-N
3410-WR-1570-C1A-1-1/2"-N
3930-WR-1204-C1A-3"-N
SIZE: 255 m3
MATERIAL:
MOTOR: 300.00 kW
C2-3410-CF-306
SCAVENGER FLOTATION CELL NO.4 ROW NO.3
3410-WR-1572-C1A-2"-N
3410-WR-1568-C1A-2"-N
3410-WR-1595-C1A-2"-N
3410-SL-1134-R1B-28"-N
3410-WR-1598-C1A-2"-N
3410-WR-1599-C1A-1-1/2"-N
3410-WR-1571-C1A-1-1/2"-N
SIZE: 255 m3
MATERIAL:
MOTOR: 300.00 kW
C2-3410-CF-307
SCAVENGER FLOTATION CELL NO.5 ROW NO.3
SIZE: 255 m3
MATERIAL:
MOTOR: 300.00 kW
C2-3410-CF-407
SCAVENGER FLOTATION CELL NO.5 ROW NO.4
3410-WR-1596-C1A-1-1/2"-N
3930-WR-1205-C1A-3"-N
SIZE: 255 m3
MATERIAL:
MOTOR: 300.00 kW
C2-3410-CF-406
SCAVENGER FLOTATION CELL NO.4 ROW NO.4
3410-WR-1567-C1A-1-1/2"-N
3410-SL-1133-R1B-28"-N
3410-WR-1608-C1A-1-1/2"-N
AG
KM
LT
ISSUED FOR CLIENT REVIEW
22-Dec-11
B
RP
ISSUED FOR COMBINED REVIEW
29-Jun-11
A
12/22/2011
K. MUNDY
A. GUNSON
W. BIE
L. TAMELIN
12/21/2011
5:38:03
PM
WBS: 3400
B
PIPING AND INSTRUMENTATION DIAGRAM
FLOTATION
3400-25J-011
SCAV ROWS 3 & 4, CELLS 4 & 5
V
V
V
V
V
V V
V
V V
V
V
V
V
V V
V
V
V V
V
V
V
V
IMAGE
IMAGE
IMAGE
IMAGE
D
4
F
B
A
3
2
1 5 6 8
E
7
C
REV.
APPROVED
CHK.
DES.
REV. DATE REVISION DESCRIPTION
CLIENT
LEAD ENGINEER
SCALE DRAWING NUMBER
CHECK DESIGN CHECK DRAWING
DESIGNED BY DRAWN BY
APPROVAL DATE
APPROVAL DATE
APPROVED
CHK.
DES.
REV. DATE REVISION DESCRIPTION REFERENCE DRAWING No.
1:100
0
1:200
5m
10m
0
5m
10m
15m
20m
1:500
10m
0
20m
30m
40m
50m
1:1000
0
100m
50m
1:20
0
0.5m
1m
1.5m
2m
0
1:25
0.5m
1m
1.5m
1:33
1/3
2.5m
2m
0
1m
2m
3m
0
1:50
1m
2m
3m
4m
5m
CAD FILE NAME: P:0CAD000SPEM**
MODEL UPDATED:
DWG. FILE UPDATED:
MANUAL CHANGES MADE: YES NO YES NO YES NO
PROJECT MANAGER
ENGINEERING MANAGER
AREA PROJECT ENGINEER
REFERENCE DRAWINGS
SAFETY SHARE:
APPROVAL DATE
CONTRACT
NO.
SAFETY SHARE :
BA6CVA1.IGR
NOTICE: THIS DRAWING HAS NOT BEEN PUBLISHED AND IS THE SOLE
PROPERTY OF FLUOR AND IS LENT TO THE BORROWER FOR THEIR
CONFIDENTIAL USE ONLY, AND IN CONSIDERATION OF THE LOAN OF THIS
DRAWING, THE BORROWER PROMISES AND AGREES TO RETURN IT UPON
REQUEST AND AGREES THAT IT WILL NOT BE REPRODUCED, COPIED LENT
OR OTHERWISE DISPOSED OF DIRECTLY OR INDIRECTLY, NOR USED FOR
ANY OTHER PURPOSE OTHER THAN WHICH IT IS FURNISHED.
NONE
Apr 2011
240K-C2-
3410
01212
LI
3410
01211
LE
3410
01212
LIT
3410
01212
LE
3410
01211
LIT
3410
01282
XA FAULT
3410
01211
LIC
3410
01232
LE
3410
01213
AT
3410
01232
LI
3410
01213
AI
3410
01231
LE
3410
01292
II
3410
01233
AI
3410
01231
LIC
3410
01282
II
3410
01232
LIT
3410
01282
HS
3410
01231
LIT
3410
01292
HS
3410
01233
AT
3410
01292
XA FAULT
TO ATM
MIN.
TO ATM
MIN.
MIN.
AIR
INTAKE
VENDOR
MIN.
AIR
INTAKE
J/SP
J/SP
VENDOR
VENDOR
VENDOR
VENDOR
VENDOR
VENDOR
VENDOR
(LAUNDER)
3410
01231
LV
+
C2-3410-CF-308
C2-3410-CF-408
3410
01211
LV
+
C2-3410-SA-402
C2-3410-AZ-403
C2-3410-SA-302
C2-3410-AZ-303
12"
12"
28"x18"
1-1/2"x1/2"
28"x18"
1-1/2"x1/2"
(LAUNDER) (LAUNDER)
(LAUNDER)
PROCESS WATER
1176 3400-25J-011
SCAVENGER TAILING
SCAV. FLOTATION CELL NO.5
ROW NO.3, C2-3410-CF-307
1170 3400-25J-011
SCAVENGER TAILING
SCAV. FLOTATION CELL NO.5
ROW NO.3, C2-3410-CF-307
1169 3400-25J-011
SCAV. CONCENTRATE
SCAV. CONC. LAUNDER ROW
NO.3, C2-3410-LA-304
1181 3400-25J-011
PROCESS WATER
1180 3400-25J-011
SCAVENGER TAILING
SCAV. FLOTATION CELL NO.5
ROW NO.4, C2-3410-CF-407
1179 3400-25J-011
SCAVENGER TAILING
SCAV. FLOTATION CELL NO.5
ROW NO.4, C2-3410-CF-407
1178 3400-25J-011
SCAV. CONCENTRATE
SCAV. CONC. LAUNDER ROW
NO.4, C2-3410-LA-404
1177 3400-25J-011
SCAV. CONCENTRATE
SCAV. ROW NO.3 CONC. PRIM.
SAMLER, C2-3410-SA-304
1400 3400-25J-013
SCAV. CONCENTRATE
SCAV. ROW NO.4 CONC. PRIM.
SAMLER, C2-3410-SA-404
1402 3400-25J-013
T1
SCAVENGER TAILING
PLANT TAILING COLLECTION
LAUNDER, C2-3710-LA-001
1189 3700-25J-001
T1
SCAVENGER TAILING
PLANT TAILING COLLECTION
LAUNDER, C2-3710-LA-001
1190 3700-25J-001
SIZE: 255 m3
MATERIAL:
MOTOR: 300.00 kW
C2-3410-CF-308
SCAVENGER FLOTATION CELL NO.6 ROW NO.3
3410-WR-1577-C1A-1-1/2"-N
3410-WR-1603-C1A-2"-N
3410-WR-1609-C1A-1-1/2"-N
SIZE:
C2-3410-AZ-303
SCAVENGER TAILING ROW NO.3 ANALYZER
3410-WR-1604-C1A-1-1/2"-N
3410-SL-1139-R1B-28"-N
3410-WR-1579-C1A-2"-N
SIZE:
C2-3410-SA-302
SCAVENGER TAILING ROW NO.3 SAMPLER
3410-WR-1580-C1A-1-1/2"-N
3410-WR-1581-C1A-1-1/2"-N
3930-WR-1204-C1A-3"-N
SIZE:
C2-3410-AZ-403
SCAVENGER TAILING ROW NO.4 ANALYZER
SIZE: 255 m3
MATERIAL:
MOTOR: 300.00 kW
C2-3410-CF-408
SCAVENGER FLOTATION CELL NO.6 ROW NO.4
3930-WR-1204-C1A-3"-N
SIZE:
C2-3410-SA-402
SCAVENGER TAILING ROW NO.4 SAMPLER
3930-WR-1205-C1A-3"-N
3410-WR-1578-C1A-1-1/2"-N
3410-WR-1602-C1A-1-1/2"-N
3410-WR-1582-C1A-1-1/2"-N
3410-SL-1140-R1B-28"-N
AG
KM
LT
ISSUED FOR CLIENT REVIEW
22-Dec-11
B
RP
ISSUED FOR COMBINED REVIEW
29-Jun-11
A
12/22/2011
K. MUNDY
A. GUNSON
W. BIE
L. TAMELIN
12/21/2011
5:39:04
PM
WBS: 3400
B
PIPING AND INSTRUMENTATION DIAGRAM
FLOTATION
3400-25J-012
SCAV ROWS 3 & 4, CELL 6 AND TAIL SAMPLING
3930-WR-1205-C1A-3"-N
V
V
3410-SL-1664-R1B-48"-N
3410-SL-1663-R1B-48"-N
V V
V
V
V V
V
V
IMAGE
IMAGE
PROCESS WATER
2815 3400-25J-013
D
4
F
B
A
3
2
1 5 6 8
E
7
C
REV.
APPROVED
CHK.
DES.
REV. DATE REVISION DESCRIPTION
CLIENT
LEAD ENGINEER
SCALE DRAWING NUMBER
CHECK DESIGN CHECK DRAWING
DESIGNED BY DRAWN BY
APPROVAL DATE
APPROVAL DATE
APPROVED
CHK.
DES.
REV. DATE REVISION DESCRIPTION REFERENCE DRAWING No.
1:100
0
1:200
5m
10m
0
5m
10m
15m
20m
1:500
10m
0
20m
30m
40m
50m
1:1000
0
100m
50m
1:20
0
0.5m
1m
1.5m
2m
0
1:25
0.5m
1m
1.5m
1:33
1/3
2.5m
2m
0
1m
2m
3m
0
1:50
1m
2m
3m
4m
5m
CAD FILE NAME: P:0CAD000SPEM**
MODEL UPDATED:
DWG. FILE UPDATED:
MANUAL CHANGES MADE: YES NO YES NO YES NO
PROJECT MANAGER
ENGINEERING MANAGER
AREA PROJECT ENGINEER
REFERENCE DRAWINGS
SAFETY SHARE:
APPROVAL DATE
CONTRACT
NO.
SAFETY SHARE :
BA6CVA1.IGR
NOTICE: THIS DRAWING HAS NOT BEEN PUBLISHED AND IS THE SOLE
PROPERTY OF FLUOR AND IS LENT TO THE BORROWER FOR THEIR
CONFIDENTIAL USE ONLY, AND IN CONSIDERATION OF THE LOAN OF THIS
DRAWING, THE BORROWER PROMISES AND AGREES TO RETURN IT UPON
REQUEST AND AGREES THAT IT WILL NOT BE REPRODUCED, COPIED LENT
OR OTHERWISE DISPOSED OF DIRECTLY OR INDIRECTLY, NOR USED FOR
ANY OTHER PURPOSE OTHER THAN WHICH IT IS FURNISHED.
NONE
Apr 2011
240K-C2-
SLOPE
C2-3410-SA-303
1-1/2"x1"
3410-SL-1142-R1A-18"-N
18"x16"
FLUOR
SIZE:
MATERIAL:
CAPACITY:
TRIM:
C2-3410-SA-304
SCAVENGER CONCENTRATE ROW NO 3 SAMPLER
NOTE 1
SIZE:
MATERIAL:
CAPACITY:
TRIM:
C2-3410-SA-303
ROUGHER CONCENTRATE ROW NO.3 SAMPLER
NOTE 1
SLOPE
C2-3410-AZ-304
SIZE:
C2-3410-AZ-304
ROUGHER/SCAVENGER CONCENTRATE ROWS NO.3 & NO.4 INSTREAM ANALYZER
V
2"x1/2"
V
1-1/2"x1"
V
V
3410-SL-1141-R1A-18"-N
V
V
V
V
V
3410-SL-1143-R1A-4"-N
3410-SL-1144-R1A-4"-N
18"x16"
3410-SL-1153-R1A-4"-N
SIZE:
MATERIAL:
CAPACITY:
TRIM:
C2-3410-SA-404
SCAVENGER CONCENTRATE ROW NO.4 SAMPLER
1-1/2"x1"
1-1/2"x1"
VENDOR
3410-SL-1154-R1A-4"-N
SLOPE
3410-WR-1204-C1A-3"-N
18"x16"
3410-SL-1128-R1A-18"-N
SIZE:
MATERIAL:
CAPACITY:
TRIM:
C2-3410-SA-403
ROUGHER CONCENTRATE ROW NO.4 SAMPLER
3410-WF-1169-C1A-2"-N
NOTE 1
NOTES:
1. PROVISION FOR SHIFT SAMPLE
C2-3410-SA-404
SLOPE
C2-3410-SA-304
NOTE 1
C2-3410-SA-403
18"x16"
3410-SL-1127-R1A-18"-N
SCAV. CONCENTRATE
COMBINED SCAVENGER
COLLECTION LAUNDER (PIPE)
1445 3400-25J-005
SCAV. CONCENTRATE
COMBINED SCAVENGER
COLLECTION LAUNDER (PIPE)
1444 3400-25J-005
ROUGHER CONCENTRATE
COMBINED ROUGHER
COLLECTION LAUNDER (PIPE)
1435 3400-25J-005
ROUGHER CONCENTRATE
COMBINED ROUGHER
COLLECTION LAUNDER (PIPE)
1434 3400-25J-005
SCAV. CONCENTRATE
COMBINED SCAVENGER
COLLECTION LAUNDER (PIPE)
1438 3400-25J-005
SCAV. CONCENTRATE
COMBINED SCAVENGER
COLLECTION LAUNDER (PIPE)
1439 3400-25J-005
ROUGHER CONCENTRATE
COMBINED ROUGHER
COLLECTION LAUNDER (PIPE)
1452 3400-25J-005
ROUGHER CONCENTRATE
COMBINED ROUGHER
COLLECTION LAUNDER (PIPE)
1453 3400-25J-005
SCAV. CONCENTRATE
SCAVENGER CONC. LAUNDER
ROW NO. 3, C2-3410-LA-304
1400 3400-25J-012
SCAV. CONCENTRATE
SCAVENGER CONC. LAUNDER
ROW NO. 4, C2-3410-LA-404
1402 3400-25J-012
FRESH WATER
1448 5100-25J-014
3410-SL-1152-R1A-18"-N
3410-SL-1146-R1A-12"-N
3410-SL-1147-R1A-4"-N
3410-SL-1148-R1A-4"-N
3410-SL-1149-R1A-4"-N
3410-SL-1150-R1A-4"-N
3410-SL-1151-R1A-18"-N
6"x4"
6"x4"
3410-SL-1145-R1A-12"-N
AI
AG
KM
LT
ISSUED FOR CLIENT REVIEW
22-Dec-11
B
RP
ISSUED FOR COMBINED REVIEW
29-Jun-11
A
12/22/2011
K. MUNDY
A. GUNSON
W. BIE
L. TAMELIN
12/22/2011
2:50:03
PM
WBS: 3400
B
PIPING AND INSTRUMENTATION DIAGRAM
FLOTATION
3400-25J-013
CONCENTRATE SAMPLING ROWS 3 & 4
ROUGHER CONCENTRATE
ROUGHER CONC. LAUNDER
ROW NO. 3, C2-3410-LA-303
2172 3400-25J-007
ROUGHER CONCENTRATE
ROUGHER CONC. LAUNDER
ROW NO. 4, C2-3410-LA-403
2173 3400-25J-007
3410-WR-1611-C1A-1-1/2"-N
3410-WR-1613-C1A-1-1/2"-N
3410-WR-1614-C1A-1-1/2"-N
3410-WR-1612-C1A-1-1/2"-N
PROCESS WATER
2815 3400-25J-012
T1
T1
T1
T1
T1
T1
3410
01441
LE
3410
01492
HS
3410
01443
AI
3410
01443
AT
3410
01433
AT
3410
01433
AI
3410
01441
LIC
3410
01441
LIT
3410
01492
II
3410
01492
XA FAULT
3410
01442
LIT
3410
01442
LI
3410
01442
LE
3410
01482
HS
3410
01411
LE
3410
01411
LIC
3410
01411
LIT
3410
01482
II
3410
01482
XA FAULT
3410
01412
LIT
3410
01412
LI
3410
01412
LE
3410
01413
AI
3410
01413
AT
3410
01423
AT
3410
01423
AI
3410
01453
AI
3410
01453
AT
3410
01491
HS
3410
01483
HS
3410
01451
LIT
3410
01432
LI
3410
01481
II
3410
01491
II
3410
01421
LIT
3410
01481
XA FAULT
3410
01432
LE
3410
01422
LIT
3410
01403
AI
3410
01421
LE
3410
01422
LI
3410
01491
XA FAULT
3410
01452
LI
3410
01431
LIC
3410
01432
LIT
3410
01451
LIC
3410
01401
LIT
3410
01452
LE
3410
01483
II
3410
01402
LE
3410
01403
AT
3410
01451
LE
3410
01493
XA FAULT
3410
01431
LE
3410
01481
HS
3410
01401
LE 3410
01422
LE
3410
01493
II
3410
01493
HS
3410
01421
LIC
3410
01402
LIT
3410
01483
XA FAULT
3410
01401
LIC
3410
01402
LI
3410
01452
LIT
PRIMARY CYCLONE O/F
PARTICLE SIZE ANALYZER,
C2-3330-AZ-501
1134 3300-25J-045
FROTHER ALCOHOL
INJECTOR, C2-3910-ZM-685
1124 3900-25J-006
PROCESS WATER
1117 3400-25J-015
SCAVENGER TAILING
SCAVENGER CELL NO.2 ROW
NO.5, C2-3410-CF-504
1120 3400-25J-015
VENDOR
MILK OF LIME
LIME DISTRIBUTION PUMPS
C2-3920-PP-093/094
1406 3900-25J-012
SCAVENGER TAILING
SCAVENGER CELL NO.2 ROW
NO.5, C2-3410-CF-504
1130 3400-25J-015
VENDOR
PRIMARY CYCLONE O/F
PARTICLE SIZE ANALYZER,
C2-3330-AZ-501
1136 3300-25J-045
MILK OF LIME
LIME DISTRIBUTION PUMPS
C2-3920-PP-093/094
1405 3900-25J-012
FROTHER ALCOHOL
INJECTOR, C2-3910-ZM-686
1132 3900-25J-006
TEST REAGENT
INJECTOR, C2-3910-ZM-702
1129 3900-25J-004
PRIMARY CYCLONE O/F
BALL MILL NO.5 O/F SAMPLER,
C2-3330-SA-501
1123 3300-25J-045
PRIMARY CYCLONE O/F
BALL MILL NO. 6 O/F
SAMPLER, C2-3330-SA-601
1133 3300-25J-045
SCAV. CONCENTRATE
SCAVENGER CONCENTRATE
LAUNDER, C2-3410-LA-504
1131 3400-25J-015
PROCESS WATER
1119 3400-25J-015
PH CONTROLLER
1403 3400-25J-042
ROUGHER CONCENTRATE
ROUGHER CONCENTRATE
LAUNDER, C2-3410-LA-503
1118 3400-25J-015
SCAVENGER TAILING
SCAVENGER CELL NO.2 ROW
NO.6, C2-3410-CF-604
1122 3400-25J-015
VENDOR
TEST REAGENT
INJECTOR, C2-3910-ZM-701
1125 3900-25J-004
SCAVENGER TAILING
SCAVENGER CELL NO.2 ROW
NO.6, C2-3410-CF-604
1127 3400-25J-015
VENDOR
PH CONTROLLER
1404 3400-25J-042
ROUGHER CONCENTRATE
ROUGHER CONCENTRATE
LAUNDER,C2-3410-LA-603
1135 3400-25J-015
SCAV. CONCENTRATE
SCAVENGER CONCENTRATE
LAUNDER, C2-3410-LA-604
1128 3400-25J-015
VENDOR
VENDOR
AIR
INTAKE
J/SP
VENDOR
VENDOR
AIR
INTAKE
J/SP
AIR
INTAKE
LAUNDER
VENDOR
AIR
INTAKE
LAUNDER
VENDOR
VENDOR
VENDOR
J/SP
J/SP J/SP
VENDOR
VENDOR
VENDOR
VENDOR
AIR
INTAKE
AIR
INTAKE
J/SP
3410
01425
XV
+
3430
04201 D
AV
+
3410
01451 A
LV
+
C2-3410-LA-604
3410
01401 A
LV
+
3410
01424
XV
+
1-1/2"x1/2"
1-1/2"x1/2"
3410
01431 A
LV
+
3"x1-1/2"
C2-3410-ST-668
1-1/2"x1/2"
C2-3410-CF-503
28"x18"
C2-3410-CF-502
3430
04201 E
AV
+
C2-3410-LA-504
C2-3410-LA-503
C2-3410-CF-603
C2-3410-CF-601
1-1/2"x1/2"
C2-3410-LA-603
12"
SIZE: 255 m3
MOTOR: 300.00 kW
C2-3410-CF-502
ROUGHER FLOTATION CELL NO.2 ROW NO.5
C2-3410-CF-602
28"x18"
SIZE: 255 m3
MOTOR: 300.00 kW
C2-3410-CF-602
ROUGHER FLOTATION CELL NO.2 ROW NO.6
3"x1-1/2"
3410
01421 A
LV
+
3410
01451 B
LV
+
3410
01421 B
LV
+
3410
01401 B
LV
+
C2-3410-CF-501
3410
01431 B
LV
+
AG
KM
LT
ISSUED FOR CLIENT REVIEW
22-Dec-11
B
RP
ISSUED FOR COMBINED REVIEW
29-Jun-11
A
12/22/2011
K. MUNDY
A. GUNSON
W. BIE
L. TAMELIN
12/22/2011
2:50:53
PM
WBS: 3400
B
PIPING AND INSTRUMENTATION DIAGRAM
FLOTATION
3400-25J-014
ROUGHER & SCAV ROWS 5 & 6
SIZE:
C2-3410-LA-603
ROUGHER CONCENTRATE LAUNDER ROW NO.6
3410-WR-1645-C1A-1-1/2"-N
3410-SL-1158-R1A-18"-N
3930-WR-1202-C1A-3"-N
SIZE: 255 m3
MATERIAL:
MOTOR: 300.00 kW
C2-3410-CF-503
SCAVENGER FLOTATION CELL NO.1 ROW NO.5
3410-WR-1646-C1A-1-1/2"-N
3410-WR-1665-C1A-1-1/2"-N
3410-WR-1619-C1A-2"-N
3410-WR-1643-C1A-1-1/2"-N
3410-WR-1648-C1A-2"-N
3410-WR-1620-C1A-1-1/2"-N
SIZE: 250 m3
MATERIAL:
MOTOR: 300.00 kW
C2-3410-CF-603
SCAVENGER FLOTATION CELL NO.1 ROW NO.6
3410-WR-1615-C1A-2"-N
3400-WR-1646-C1A-1-1/2"-N
3410-SL-1156-R1B-28"-N
SIZE:
C2-3410-LA-504
SCAVENGER CONCENTRATE LAUNDER ROW NO.5
SIZE:
C2-3410-LA-503
ROUGHER CONCENTRATE LAUNDER ROW NO.5
SIZE:
C2-3410-LA-604
SCAVENGER CONCENTRATE LAUNDER ROW NO.6
3410-SL-1157-R1A-18"-N
3410-WR-1644-C1A-2"-N
SIZE: 255 m3
MATERIAL:
MOTOR: 300.00 kW
C2-3410-CF-601
ROUGHER FLOTATION CELL NO.1 ROW NO.6
SIZE:
C2-3410-ST-668
ROUGHER FLOTATION CONC. DIST. BOX NO.6 ROW NO.6
3410-WR-1617-C1A-1-1/2"-N
3410-WR-1649-C1A-1-1/2"-N
3410-SL-1155-R1B-28"-N
3930-WR-1203-C1A-3"-N
3410-WR-1617-C1A-1-1/2"-N
SIZE: 255 m3
MATERIAL:
MOTOR: 300.00 kW
C2-3410-CF-501
ROUGHER FLOTATION CELL NO.1 ROW NO.5
3410
01441 A
LV
+
3410
01441 B
LV
+
1-1/2"x1/2"
3410-WR-1635-C1A-1-1/2"-N
3410-WR-1634-C1A-2"-N
3410
01411 A
LV
+
3410
01411 B
LV
+
1-1/2"x1/2"
C2-3410-ST-568
3410
01404
XV
+
3410
01405
XV
+
12"
12"
12"
12"
3410-WR-1616-C1A-1-1/2"-N
3410-WR-1661-C1A-1-1/2"-N
3410-WR-1660-C1A-2"-N
D
4
F
B
A
3
2
1 5 6 8
E
7
C
REV.
APPROVED
CHK.
DES.
REV. DATE REVISION DESCRIPTION
CLIENT
LEAD ENGINEER
SCALE DRAWING NUMBER
CHECK DESIGN CHECK DRAWING
DESIGNED BY DRAWN BY
APPROVAL DATE
APPROVAL DATE
APPROVED
CHK.
DES.
REV. DATE REVISION DESCRIPTION REFERENCE DRAWING No.
1:100
0
1:200
5m
10m
0
5m
10m
15m
20m
1:500
10m
0
20m
30m
40m
50m
1:1000
0
100m
50m
1:20
0
0.5m
1m
1.5m
2m
0
1:25
0.5m
1m
1.5m
1:33
1/3
2.5m
2m
0
1m
2m
3m
0
1:50
1m
2m
3m
4m
5m
CAD FILE NAME: P:0CAD000SPEM**
MODEL UPDATED:
DWG. FILE UPDATED:
MANUAL CHANGES MADE: YES NO YES NO YES NO
PROJECT MANAGER
ENGINEERING MANAGER
AREA PROJECT ENGINEER
REFERENCE DRAWINGS
SAFETY SHARE:
APPROVAL DATE
CONTRACT
NO.
SAFETY SHARE :
BA6CVA1.IGR
NOTICE: THIS DRAWING HAS NOT BEEN PUBLISHED AND IS THE SOLE
PROPERTY OF FLUOR AND IS LENT TO THE BORROWER FOR THEIR
CONFIDENTIAL USE ONLY, AND IN CONSIDERATION OF THE LOAN OF THIS
DRAWING, THE BORROWER PROMISES AND AGREES TO RETURN IT UPON
REQUEST AND AGREES THAT IT WILL NOT BE REPRODUCED, COPIED LENT
OR OTHERWISE DISPOSED OF DIRECTLY OR INDIRECTLY, NOR USED FOR
ANY OTHER PURPOSE OTHER THAN WHICH IT IS FURNISHED.
NONE
Apr 2011
240K-C2-
MIN
MIN
MIN
MIN
MIN
MIN MIN
MIN
V
FC
FC
V
V
V
V
V
V
V
V
V V
V
V
V
V
V
V
V
V
V
FI
FI
3330-SL-1079-C1B-4"-N
3330-SL-1085-RIB-48"-N
3410-RF-1036-C1D-1"-N
3410-RC-1129-C1D-1"-N
3930-WR-1202-C1A-3"-N
3410-RL-1014-C1B-1-1/2"-N
3410-RL-1015-C1B-1-1/2"-N
3330-SL-1080-C1B-4"-N
3330-SL-1081-RIB-48"-N
3410-RF-1035-C1D-1"-N
3410-RC-1128-C1D-1"-N
3930-WR-1203-C1A-3"-N
3400
01431
LIT
3410-SL-1800-R1B-28"-N
3410-SL-1170-R1B-28"-N
3410-SL-1799-R1B-28"-N
3410-SL-1169-R1B-28"-N
3410
01405
ZS
3410
01405
XS
3410
01404
ZS
3410
01404
XS
3410
01425
ZS
3410
01425
XS
3410
01424
ZS
3410
01424
XS
V
V V
V
V
V
V
V
V V
V
V
V
V
V
V
V V
V
V
PROCESS WATER
2892 3900-25J-015
PROCESS WATER
2893 3900-25J-015
SIZE:
C2-3410-ST-568
ROUGHER FLOTATION CONC. DIST. BOX NO.5 ROW NO.5
SCAV. CONCENTRATE
SCAV. CONC. DISTRIBUTION
BOX NO.5, C2-3410-ST-569
4096 3400-25J-015
SCAV. CONCENTRATE
SCAV. CONC. DISTRIBUTION
BOX NO.6, C2-3410-ST-569
4097 3400-25J-015
IMAGE
IMAGE
IMAGE
IMAGE
IMAGE
IMAGE
D
4
F
B
A
3
2
1 5 6 8
E
7
C
REV.
APPROVED
CHK.
DES.
REV. DATE REVISION DESCRIPTION
CLIENT
LEAD ENGINEER
SCALE DRAWING NUMBER
CHECK DESIGN CHECK DRAWING
DESIGNED BY DRAWN BY
APPROVAL DATE
APPROVAL DATE
APPROVED
CHK.
DES.
REV. DATE REVISION DESCRIPTION REFERENCE DRAWING No.
1:100
0
1:200
5m
10m
0
5m
10m
15m
20m
1:500
10m
0
20m
30m
40m
50m
1:1000
0
100m
50m
1:20
0
0.5m
1m
1.5m
2m
0
1:25
0.5m
1m
1.5m
1:33
1/3
2.5m
2m
0
1m
2m
3m
0
1:50
1m
2m
3m
4m
5m
CAD FILE NAME: P:0CAD000SPEM**
MODEL UPDATED:
DWG. FILE UPDATED:
MANUAL CHANGES MADE: YES NO YES NO YES NO
PROJECT MANAGER
ENGINEERING MANAGER
AREA PROJECT ENGINEER
REFERENCE DRAWINGS
SAFETY SHARE:
APPROVAL DATE
CONTRACT
NO.
SAFETY SHARE :
BA6CVA1.IGR
NOTICE: THIS DRAWING HAS NOT BEEN PUBLISHED AND IS THE SOLE
PROPERTY OF FLUOR AND IS LENT TO THE BORROWER FOR THEIR
CONFIDENTIAL USE ONLY, AND IN CONSIDERATION OF THE LOAN OF THIS
DRAWING, THE BORROWER PROMISES AND AGREES TO RETURN IT UPON
REQUEST AND AGREES THAT IT WILL NOT BE REPRODUCED, COPIED LENT
OR OTHERWISE DISPOSED OF DIRECTLY OR INDIRECTLY, NOR USED FOR
ANY OTHER PURPOSE OTHER THAN WHICH IT IS FURNISHED.
NONE
Apr 2011
240K-C2-
3410
01511
LIT
3410
01513
AI
3410
01523
AT
3410
01522
LI
3410
01513
AT
3410
01523
AI 3410
01532
LIT
3410
01531
LIC
3410
01503
AI
3410
01503
AT
3410
01582
II
3410
01502
LI
3410
01582
XA
FAULT
3410
01502
LIT
3410
01592
II
3410
01512
LIT
3410
01512
LI
3410
01581
XA FAULT
3410
01521
LIT
3410
01581
II
3410
01521
LIC
3410
01533
AT
3410
01581
HS
3410
01582
HS
3410
01531
LE
3410
01502
LE
3410
01532
LI
3410
01591
XA FAULT
3410
01533
AI
3410
01501
LE
3410
01501
LIC
3410
01522
LE
3410
01501
LIT
3410
01592
XA FAULT
3410
01521
LE
3410
01532
LE
3410
01512
LE
3410
01531
LIT
3410
01591
HS
3410
01522
LIT
3410
01511
LE
3410
01592
HS
3410
01591
II
3410
01511
LIC
VENDOR
VENDOR
VENDOR
VENDOR
VENDOR
AIR
INTAKE
AIR
INTAKE
J/SP
J/SP
AIR
INTAKE
J/SP
AIR
INTAKE
J/SP
VENDOR
VENDOR
VENDOR
VENDOR
VENDOR
VENDOR
VENDOR
VENDOR
VENDOR
VENDOR
VENDOR
VENDOR
VENDOR
VENDOR
VENDOR
(LAUNDER)
(LAUNDER)
C2-3410-CF-604 C2-3410-CF-605
C2-3410-ST-569
C2-3410-ST-669
3410
01531 B
LV
+
3410
01511 A
LV
+
3410
01511 B
LV
+
3410
01521 A
LV
+
3410
01501 B
LV
+
3410
01501 A
LV
+
3410
01525
XV
+
3410
01521 B
LV
+
3410
01531 A
LV
+
C2-3410-CF-505
C2-3410-CF-504
1-1/2"x1/2"
1-1/2"x1/2"
1-1/2"x1/2"
BA-2000
1-1/2"x1/2"
12"
12"
12"
12"
3410
01505
XV
+
(LAUNDER)
(LAUNDER)
(LAUNDER) (LAUNDER)
(LAUNDER)
PROCESS WATER
1119 3400-25J-014
SCAVENGER TAILING
SCAVENGER FLOTATION
CELL NO.1 ROW NO.5,
1120 3400-25J-014
SCAVENGER TAILING
SCAVENGER FLOTATION
CELL NO.1, ROW NO.5,
1130 3400-25J-014
SCAV. CONCENTRATE
SCAV. CONC. LAUNDER ROW
NO.5, C2-3410-LA-504
1131 3400-25J-014
ROUGHER CONCENTRATE
ROUGHER CONC. LAUNDER
ROW NO.5, C2-3410-LA-503
1118 3400-25J-014
PROCESS WATER
1117 3400-25J-014
SCAVENGER TAILING
SCAVENGER FLOTATION
CELL NO.1, ROW NO.6,
1122 3400-25J-014
SCAVENGER TAILING
SCAVENGER FLOTATION
CELL NO.1, ROW NO.6,
1127 3400-25J-014
SCAV. CONCENTRATE
SCAV. CONC. LAUNDER ROW
NO.6, C2-3410-LA-604,
1128 3400-25J-014
ROUGHER CONCENTRATE
ROUGHER CONC. LAUNDER
ROW NO.6, C2-3410-LA-603
1135 3400-25J-014
C2-3410-SA-503
C2-3410-SA-603
T1
T1
SCAVENGER TAILING
SCAVENGER CELL NO.4 ROW
NO.6, C2-3410-CF-606
1250 3400-25J-016
SCAVENGER TAILING
SCAVENGER CELL NO.4 ROW
NO.5, C2-3410-CF-506
1237 3400-25J-016
SCAV. CONCENTRATE
SCAVENGER CONCENTRATE
LAUNDER, C2-3410-LA-504
1236 3400-25J-016
ROUGHER CONCENTRATE
ROUGHER CONCENTRATE
ROW NO.6 SAMPLER,
1235 3400-25J-021
PROCESS WATER
1247 3400-25J-016
SCAVENGER TAILING
SCAVENGER CELL NO.4 ROW
NO.5, C2-3410-CF-506
1248 3400-25J-016
SCAVENGER TAILING
SCAVENGER CELL NO.4 ROW
NO.6, C2-3410-CF-606
1253 3400-25J-016
PROCESS WATER
1246 3400-25J-016
ROUGHER CONCENTRATE
ROUGHER CONCENTRATE
ROW NO. 5 SAMPLER,
1249 3400-25J-021
SCAV. CONCENTRATE
SCAV. CONCENTRATE
LAUNDER, C2-3410-LA-604
1251 3400-25J-016
T1
T1
3410-WR-1655-C1A-2"-N
3410-WR-1667-C1A-3"-N
3410-WR-1651-C1A-1-1/2"-N
3410-WR-1624-C1A-1-1/2"-N
3930-WR-1202-C1A-3"-N
3410-WR-1622-C1A-1-1/2"-N
3930-WR-1202-C1A-3"-N
3410-WR-1650-C1A-2"-N
3410-WR-1656-C1A-1-1/2"-N
3410-SL-1158-R1A-18"-N
SIZE:
C2-3410-ST-669
SCAVENGER FLOTATION CONE DIST. BOX NO. 6 ROW NO. 6
3410-SL-1157-R1A-18"-N
3930-WR-1203-C1A-3"-N
SIZE: 255 m3
MATERIAL:
MOTOR: 300.00 kW
C2-3410-CF-504
SCAVENGER FLOTATION CELL NO.2 ROW NO.5
3410-WR-1621-C1A-2"-N
3410-SL-1161-R1B-28"-N
SIZE: 255 m3
MATERIAL:
MOTOR: 300.00 kW
C2-3410-CF-605
SCAVENGER FLOTATION CELL NO.3 ROW NO.6
3410-WR-1625-C1A-1-1/2"-N
SIZE:
C2-3410-ST-569
SCAVENGER FLOTATION CONE. DIST BOX NO. 5 ROW NO. 5
3410-WR-1623-C1A-2"-N
SIZE: 255 m3
MATERIAL:
MOTOR: 300.00 kW
C2-3410-CF-604
SCAVENGER FLOTATION CELL NO.2 ROW NO.6
3930-WR-1203-C1A-3"-N
3410-WR-1653-C1A-3"-N
SIZE: 255 m3
MATERIAL:
MOTOR: 300.00 kW
C2-3410-CF-505
SCAVENGER FLOTATION CELL NO.3 ROW NO.5
AG
KM
LT
ISSUED FOR CLIENT REVIEW
22-Dec-11
B
RP
ISSUED FOR COMBINED REVIEW
29-Jun-11
A
12/22/2011
K. MUNDY
A. GUNSON
W. BIE
L. TAMELIN
12/22/2011
2:52:31
PM
WBS: 3400
B
PIPING AND INSTRUMENTATION DIAGRAM
FLOTATION
3400-25J-015
SCAV ROWS 5 & 6, CELLS 2 & 3
3410
01504
XV
+
3410
01524
XV
+
3410
01504
ZS
3410
01505
ZS
3410
01504
XA
3410
01505
XA
OP/CL OP/CL
3410
01524
ZS
3410
01525
ZS
3410
01524
XA
3410
01525
XA
OP/CL OP/CL
MISMATCH MISMATCH
MISMATCH MISMATCH
V
V
V V
V V
V
V
V
V
V V
V
V
V
V
3410-SL-1163-R1B-28"-N
3410-SL-1164-R1B-28"-N
FI FI
FI FI
V
V
V
V
V
V
V
V
V
V
V V
V
V
V V
C2-3410-CF-603
C2-3410-CF-603
C2-3410-CF-503
C2-3410-CF-503
3410-RC-1085-C1D-1"-N
3410-RC-1085-C1D-1"-N
3410-RC-1048-C1D-1"-N
3410-RC-1048-C1D-1"-N
FROTHER ALCOHOL
INJECTOR, C2-3910-ZM-745
4094 3900-25J-006
3400-RF- -C1D-1"-N
IMAGE
FROTHER ALCOHOL
INJECTOR, C2-3910-ZM-746
4095 3900-25J-006
3400-RF- -C1D-1"-N
SCAVENGER
SCAVENGER FLOTATION
CELL NO.1, ROW NO.6,
4096 3400-25J-014
C2-3410-CF-603
3410-SL-1800-R1B-28"-N
IMAGE
SCAVENGER
SCAVENGER FLOTATION
CELL NO.1, ROW NO.5,
4097 3400-25J-014
C2-3410-CF-503
MOLY COLLECTOR
INJECTOR, C2-3910-ZM-577
3806 3900-25J-003
SECONDARY COLLECTOR
INJECTOR, C2-3910-ZM-626
3800 3900-25J-002
MOLY COLLECTOR
INJECTOR, C2-3910-ZM-578
3805 3900-25J-003
SECONDARY COLLECTOR
INJECTOR, C2-3910-ZM-627
3801 3900-25J-002
IMAGE
IMAGE
D
4
F
B
A
3
2
1 5 6 8
E
7
C
REV.
APPROVED
CHK.
DES.
REV. DATE REVISION DESCRIPTION
CLIENT
LEAD ENGINEER
SCALE DRAWING NUMBER
CHECK DESIGN CHECK DRAWING
DESIGNED BY DRAWN BY
APPROVAL DATE
APPROVAL DATE
APPROVED
CHK.
DES.
REV. DATE REVISION DESCRIPTION REFERENCE DRAWING No.
1:100
0
1:200
5m
10m
0
5m
10m
15m
20m
1:500
10m
0
20m
30m
40m
50m
1:1000
0
100m
50m
1:20
0
0.5m
1m
1.5m
2m
0
1:25
0.5m
1m
1.5m
1:33
1/3
2.5m
2m
0
1m
2m
3m
0
1:50
1m
2m
3m
4m
5m
CAD FILE NAME: P:0CAD000SPEM**
MODEL UPDATED:
DWG. FILE UPDATED:
MANUAL CHANGES MADE: YES NO YES NO YES NO
PROJECT MANAGER
ENGINEERING MANAGER
AREA PROJECT ENGINEER
REFERENCE DRAWINGS
SAFETY SHARE:
APPROVAL DATE
CONTRACT
NO.
SAFETY SHARE :
BA6CVA1.IGR
NOTICE: THIS DRAWING HAS NOT BEEN PUBLISHED AND IS THE SOLE
PROPERTY OF FLUOR AND IS LENT TO THE BORROWER FOR THEIR
CONFIDENTIAL USE ONLY, AND IN CONSIDERATION OF THE LOAN OF THIS
DRAWING, THE BORROWER PROMISES AND AGREES TO RETURN IT UPON
REQUEST AND AGREES THAT IT WILL NOT BE REPRODUCED, COPIED LENT
OR OTHERWISE DISPOSED OF DIRECTLY OR INDIRECTLY, NOR USED FOR
ANY OTHER PURPOSE OTHER THAN WHICH IT IS FURNISHED.
NONE
Apr 2011
240K-C2-
VENDOR
VENDOR
3410
01691
II
3410
01691
XA FAULT
3410
01622
LIT
3410
01613
AT
3410
01611
LIC
3410
01611
LIT
3410
01623
AT
3410
01622
LI
3410
01623
AI
3410
01603
AI
3410
01603
AT
3410
01632
LIT
3410
01682
II
3410
01631
LIC
3410
01692
II
3410
01602
LI
3410
01601
LIC
3410
01613
AI
3410
01601
LIT
3410
01632
LE
3410
01682
XA FAULT
3410
01602
LIT
3410
01612
LIT
3410
01612
LI
3410
01633
AT
3410
01681
XA FAULT
3410
01621
LIT
3410
01682
HS
3410
01681
II
3410
01621
LIC
3410
01633
AI
3410
01681
HS
3410
01631
LE
3410
01622
LE
3410
01602
LE
3410
01632
LI
3410
01601
LE
3410
01621
LE
3410
01691
HS
3410
01612
LE
3410
01611
LE
3410
01692
XA FAULT
3410
01692
HS
3410
01631
LIT
MIN.
MIN.
MIN.
MIN.
TO ATM
TO ATM
TO ATM
TO ATM
AIR
INTAKE
MIN.
J/SP
J/SP
MIN.
AIR
INTAKE
MIN.
J/SP
AIR
INTAKE
J/SP
VENDOR
VENDOR
VENDOR
VENDOR
MIN.
AIR
INTAKE
VENDOR
VENDOR
VENDOR
VENDOR
VENDOR
(LAUNDER)
VENDOR
(LAUNDER) (LAUNDER)
(LAUNDER)
VENDOR
VENDOR
VENDOR
VENDOR
VENDOR
VENDOR
VENDOR
VENDOR
28"x18"
1-1/2"x1/2"
1-1/2"x1/2"
C2-3410-CF-507
C2-3410-CF-506
C2-3410-CF-606 C2-3410-CF-607
1-1/2"x1/2"
1-1/2"x1/2"
28"x18"
28"x18"
12"
12"
12"
12"
28"x18"
3410
01631 A
LV
+
3410
01631 B
LV
+
3410
01611 B
LV
+
3410
01611 A
LV
+
3410
01601 A
LV
+
3410
01601 B
LV
+
3410
01621 A
LV
+
3410
01621 B
LV
+
PROCESS WATER
1247 3400-25J-015
SCAVENGER TAILING
SCAV. FLOTATION CELL NO.3
ROW NO.5, C2-3410-CF-505
1248 3400-25J-015
SCAVENGER TAILING
SCAV. FLOTATION CELL NO.3
ROW NO.5, C2-3410-CF-505
1237 3400-25J-015
PROCESS WATER
1246 3400-25J-015
SCAVENGER TAILING
SCAV. FLOTATION CELL NO.3
ROW NO.6, C2-3410-CF-605
1253 3400-25J-015
SCAVENGER TAILING
SCAV. FLOTATION CELL NO.3
ROW NO.6, C2-3410-CF-605
1250 3400-25J-015
SCAV. CONCENTRATE
SCAVENGER CONCENTRATE
LAUNDER, C2-3410-LA-604
1251 3400-25J-015
SCAV. CONCENTRATE
SCAVENGER CONCENTRATE
LAUNDER, C2-3410-LA-504
1236 3400-25J-015
T1
SCAV. CONCENTRATE
SCAV. CONC. LAUNDER ROW
NO.5, C2-3410-LA-504
1147 3400-25J-017
SCAVENGER TAILING
SCAV. CELL NO.6 ROW NO.6,
C2-3410-CF-608
1140 3400-25J-017
T1
SCAVENGER TAILING
SCAV. CELL NO.6 ROW NO.6,
C2-3410-CF-608
1139 3400-25J-017
SCAVENGER TAILING
SCAV. CELL NO.6 ROW NO.5,
C2-3410-CF-508
1137 3400-25J-017
T1
PROCESS WATER
1146 3400-25J-017
PROCESS WATER
1144 3400-25J-017
SCAV. CONCENTRATE
SCAV. CONC. LAUNDER ROW
NO.6, C2-3410-LA-604
1138 3400-25J-017
SCAVENGER TAILING
SCAV. CELL NO.6 ROW NO.5,
C2-3410-CF-508
1145 3400-25J-017
T1
3410-WR-1202-C1A-3"-N
3410-WR-1668-C1A-1-1/2"-N
3410-WR-1629-C1A-1-1/2"-N
3410-WR-1655-C1A-2"-N
3930-WR-1203-C1A-3"-N
SIZE: 255 m3
MATERIAL:
MOTOR: 300.00 kW
C2-3410-CF-507
SCAVENGER FLOTATION CELL NO.5 ROW NO.5
SIZE: 255 m3
MATERIAL:
MOTOR: 300.00 kW
C2-3410-CF-506
SCAVENGER FLOTATION CELL NO.4 ROW NO.5
3410-SL-1166-R1B-28"-N
3410-WR-1628-C1A-1-1/2"-N
3410-WR-1657-C1A-1-1/2"-N
3410-WR-1630-C1A-1-1/2"-N
3410-SL-1167-R1B-28"-N
3410-WR-1659-C1A-1-1/2"-N
3410-WR-1658-C1A-2"-N
3410-WR-1631-C1A-2"-N
3410-SL-1165-R1B-28"-N
3410-WR-1656-C1A-1-1/2"-N
SIZE: 255 m3
MATERIAL:
MOTOR: 300.00 kW
C2-3410-CF-606
SCAVENGER FLOTATION CELL NO.4 ROW NO.6
3930-WR-1203-C1A-3"-N
3410-WR-1632-C1A-1-1/2"-N
SIZE: 255 m3
MATERIAL:
MOTOR: 300.00 kW
C2-3410-CF-607
SCAVENGER FLOTATION CELL NO.5 ROW NO.6
3410-WR-1627-C1A-2"-N
3410-WR-1626-C1A-1-1/2"-N
3410-SL-1168-R1B-28"-N
AG
KM
LT
ISSUED FOR CLIENT REVIEW
22-Dec-11
B
RP
ISSUED FOR COMBINED REVIEW
29-Jun-11
A
12/22/2011
K. MUNDY
A. GUNSON
W. BIE
L. TAMELIN
12/21/2011
5:43:28
PM
WBS: 3400
B
PIPING AND INSTRUMENTATION DIAGRAM
FLOTATION
3400-25J-016
SCAV ROWS 5 & 6, CELLS 4 & 5
V
V
V
V
V
V
V
V
V
V
V
V
V
V
V V
V
V
V
V
V
V
V
V
IMAGE
IMAGE
IMAGE
IMAGE
D
4
F
B
A
3
2
1 5 6 8
E
7
C
REV.
APPROVED
CHK.
DES.
REV. DATE REVISION DESCRIPTION
CLIENT
LEAD ENGINEER
SCALE DRAWING NUMBER
CHECK DESIGN CHECK DRAWING
DESIGNED BY DRAWN BY
APPROVAL DATE
APPROVAL DATE
APPROVED
CHK.
DES.
REV. DATE REVISION DESCRIPTION REFERENCE DRAWING No.
1:100
0
1:200
5m
10m
0
5m
10m
15m
20m
1:500
10m
0
20m
30m
40m
50m
1:1000
0
100m
50m
1:20
0
0.5m
1m
1.5m
2m
0
1:25
0.5m
1m
1.5m
1:33
1/3
2.5m
2m
0
1m
2m
3m
0
1:50
1m
2m
3m
4m
5m
CAD FILE NAME: P:0CAD000SPEM**
MODEL UPDATED:
DWG. FILE UPDATED:
MANUAL CHANGES MADE: YES NO YES NO YES NO
PROJECT MANAGER
ENGINEERING MANAGER
AREA PROJECT ENGINEER
REFERENCE DRAWINGS
SAFETY SHARE:
APPROVAL DATE
CONTRACT
NO.
SAFETY SHARE :
BA6CVA1.IGR
NOTICE: THIS DRAWING HAS NOT BEEN PUBLISHED AND IS THE SOLE
PROPERTY OF FLUOR AND IS LENT TO THE BORROWER FOR THEIR
CONFIDENTIAL USE ONLY, AND IN CONSIDERATION OF THE LOAN OF THIS
DRAWING, THE BORROWER PROMISES AND AGREES TO RETURN IT UPON
REQUEST AND AGREES THAT IT WILL NOT BE REPRODUCED, COPIED LENT
OR OTHERWISE DISPOSED OF DIRECTLY OR INDIRECTLY, NOR USED FOR
ANY OTHER PURPOSE OTHER THAN WHICH IT IS FURNISHED.
NONE
Apr 2011
240K-C2-
3410
01712
LI
3410
01711
LE
3410
01712
LIT
3410
01712
LE
3410
01711
LIT
3410
01782
XA FAULT
3410
01711
LIC
3410
01732
LE
3410
01713
AT
3410
01732
LI
3410
01713
AI
3410
01731
LE
3410
01792
II
3410
01733
AI
3410
01731
LIC
3410
01782
II
3410
01732
LIT
3410
01782
HS
3410
01731
LIT
3410
01792
HS
3410
01733
AT
3410
01792
XA FAULT
TO ATM
MIN.
TO ATM
MIN.
MIN.
AIR
INTAKE
VENDOR
MIN.
AIR
INTAKE
J/SP
J/SP
VENDOR
VENDOR
VENDOR
VENDOR
VENDOR
3410
01731
LV
+
C2-3410-CF-508
C2-3410-CF-608
3410
01711
LV
+
C2-3410-SA-602
C2-3410-AZ-603
C2-3410-SA-502
C2-3410-AZ-503
12"
12"
28"x18"
1-1/2"x1/2"
28"x18"
1-1/2"x1/2"
(LAUNDER) (LAUNDER)
(LAUNDER)
PROCESS WATER
1144 3400-25J-016
SCAVENGER TAILING
SCAV. FLOTATION CELL NO.5
ROW NO.5, C2-3410-CF-307
1145 3400-25J-016
SCAVENGER TAILING
SCAV. FLOTATION CELL NO.5
ROW NO.5, C2-3410-CF-307
1137 3400-25J-016
SCAV. CONCENTRATE
SCAV. CONC. LAUNDER ROW
NO.3, C2-3410-LA-504
1147 3400-25J-016
PROCESS WATER
1146 3400-25J-016
SCAVENGER TAILING
SCAV. FLOTATION CELL NO.5
ROW NO.6, C2-3410-CF-407
1140 3400-25J-016
SCAVENGER TAILING
SCAV. FLOTATION CELL NO.5
ROW NO.6, C2-3410-CF-407
1139 3400-25J-016
SCAV. CONCENTRATE
SCAV. CONC. LAUNDER ROW
NO.4, C2-3410-LA-604
1138 3400-25J-016
SCAV. CONCENTRATE
SCAV. ROW NO.5 CONC. PRIM.
SAMPLER, C2-3410-SA-504
1413 3400-25J-021
SCAV. CONCENTRATE
SCAV. ROW NO.6 CONC. PRIM.
SAMPLER, C2-3410-SA-604
1415 3400-25J-021
T1
SCAVENGER TAILING
PLANT TAILING COLLECTION
LAUNDER, C2-3710-LA-001
1095 3700-25J-001
SCAVENGER TAILING
PLANT TAILING COLLECTION
LAUNDER, C2-3710-LA-001
1096 3700-25J-001
T1
SIZE:
C2-3410-AZ-503
SCAVENGER TAILING ROW NO.5 ANALYZER
3410-WR-1664-C1A-1-1/2"-N
SIZE: 255 m3
MATERIAL:
MOTOR: 300.00 kW
C2-3410-CF-508
SCAVENGER FLOTATION CELL NO.6 ROW NO.5
3410-WR-1669-C1A-1-1/2"-N
SIZE: 255 m3
MATERIAL:
MOTOR: 300.00 kW
C2-3410-CF-608
SCAVENGER FLOTATION CELL NO.6 ROW NO.6
3930-WR-1203-C1A-3"-N
SIZE:
C2-3410-SA-602
SCAVENGER TAILING ROW NO.6 SAMPLER
SIZE:
C2-3410-AZ-603
SCAVENGER TAILING ROW NO.6 ANALYZER
3410-WR-1638-C1A-2"-N
3410-WR-1637-C1A-1-1/2"-N
3410-WR-1663-C1A-2"-N
3410-SL-1172-R1B-28"-N
3410-WR-1662-C1A-1-1/2"-N
3410-SL-1171-R1B-28"-N
3410-WR-1639-C1A-1-1/2"-N
3930-WR-1203-C1A-3"-N
3410-WR-1641-C1A-1-1/2"-N
3410-WR-1636-C1A-1-1/2"-N
SIZE:
C2-3410-SA-502
SCAVENGER TAILING ROW NO.5 SAMPLER
3410-WR-1640-C1A-1-1/2"-N
3410-WR-1642-C1A-1-1/2"-N
AG
KM
LT
ISSUED FOR CLIENT REVIEW
22-Dec-11
B
RP
ISSUED FOR COMBINED REVIEW
29-Jun-11
A
12/22/2011
K. MUNDY
A. GUNSON
W. BIE
L. TAMELIN
12/20/2011
5:03:37
PM
WBS: 3400
B
PIPING AND INSTRUMENTATION DIAGRAM
FLOTATION
3400-25J-017
SCAV ROWS 5 & 6, CELL 6 AND TAIL SAMPLING
3930-WR-1202-C1A-3"-N
VENDOR
VENDOR
(LAUNDER)
V
V
PROCESS WATER
1414 3400-25J-021
3410-SL-1665-R1B-48"-N
3410-SL-1666-R1B-48"-N
V
V
V V
V V V
V
IMAGE
IMAGE
D
4
F
B
A
3
2
1 5 6 8
E
7
C
REV.
APPROVED
CHK.
DES.
REV. DATE REVISION DESCRIPTION
CLIENT
LEAD ENGINEER
SCALE DRAWING NUMBER
CHECK DESIGN CHECK DRAWING
DESIGNED BY DRAWN BY
APPROVAL DATE
APPROVAL DATE
APPROVED
CHK.
DES.
REV. DATE REVISION DESCRIPTION REFERENCE DRAWING No.
1:100
0
1:200
5m
10m
0
5m
10m
15m
20m
1:500
10m
0
20m
30m
40m
50m
1:1000
0
100m
50m
1:20
0
0.5m
1m
1.5m
2m
0
1:25
0.5m
1m
1.5m
1:33
1/3
2.5m
2m
0
1m
2m
3m
0
1:50
1m
2m
3m
4m
5m
CAD FILE NAME: P:0CAD000SPEM**
MODEL UPDATED:
DWG. FILE UPDATED:
MANUAL CHANGES MADE: YES NO YES NO YES NO
PROJECT MANAGER
ENGINEERING MANAGER
AREA PROJECT ENGINEER
REFERENCE DRAWINGS
SAFETY SHARE:
APPROVAL DATE
CONTRACT
NO.
SAFETY SHARE :
BA6CVA1.IGR
NOTICE: THIS DRAWING HAS NOT BEEN PUBLISHED AND IS THE SOLE
PROPERTY OF FLUOR AND IS LENT TO THE BORROWER FOR THEIR
CONFIDENTIAL USE ONLY, AND IN CONSIDERATION OF THE LOAN OF THIS
DRAWING, THE BORROWER PROMISES AND AGREES TO RETURN IT UPON
REQUEST AND AGREES THAT IT WILL NOT BE REPRODUCED, COPIED LENT
OR OTHERWISE DISPOSED OF DIRECTLY OR INDIRECTLY, NOR USED FOR
ANY OTHER PURPOSE OTHER THAN WHICH IT IS FURNISHED.
NONE
Apr 2011
240K-C2-
3410-SL-1182-R1A-4"-N
3410-SL-1185-R1A-4"-N
3410-SL-1181-R1A-4"-N
3410-SL-1180-R1A-4"-N
3410-SL-1179-R1A-4"-N
3410-SL-1178-R1A-12"-N
3"x16"
3410-SL-1184-R1A-18"-N
3410-SL-1176-R1A-4"-N
3410-SL-1175-R1A-4"-N
V
V
V
V
V
3410-SL-1157-R1A-18"-N
V
V
18"x16"
1-1/2"x1"
V
2"x1/2"
V
SIZE:
C2-3410-AZ-504
ROUGHER/SCAVENGER CONCENTRATE ROWS NO.5 & NO.6 INSTREAM ANALYZER
C2-3410-AZ-504
SLOPE
NOTE 1
C2-3410-SA-603
SIZE:
MATERIAL:
CAPACITY:
TRIM:
C2-3410-SA-503
ROUGHER CONC. ROW NO.5 SAMPLER
NOTE 1
C2-3410-SA-504
NOTE 1
SLOPE
SIZE:
MATERIAL:
CAPACITY:
TRIM:
C2-3410-SA-504
SCAVENGER CONC. ROW NO.5 SAMPLER
C2-3410-SA-604
FLUOR
18"x16"
NOTES:
1. PROVISION FOR SHIFT SAMPLE
1-1/2"x1"
C2-3410-SA-503
NOTE 1
SLOPE
3410-WF-1175-C1A-2"-N
SIZE:
MATERIAL:
CAPACITY:
TRIM:
C2-3410-SA-603
ROUGHER CONC. ROW NO.6 SAMPLER
3410-SL-1177-R1A-12"-N
3410-SL-1158-R1A-18"-N
18"x16"
6"x4"
3930-WR-1202-C1A-3"-N
6"x4"
SLOPE
3410-SL-1186-R1A-4"-N
VENDOR
1-1/2"x1"
3410-SL-1183-R1A-18"-N
1-1/2"x1"
SIZE:
MATERIAL:
CAPACITY:
TRIM:
C2-3410-SA-604
SCAVENGER CONC. ROW NO.6 SAMPLER
SCAV. CONCENTRATE
COMBINED SCAVENGER
COLLECTION LAUNDER (PIPE)
1450 3400-25J-005
SCAV. CONCENTRATE
COMBINED SCAVENGER
COLLECTION LAUNDER (PIPE)
1451 3400-25J-005
SCAV. CONCENTRATE
COMBINED SCAVENGER
COLLECTION LAUNDER (PIPE)
1447 3400-25J-005
SCAV. CONCENTRATE
COMBINED SCAVENGER
COLLECTION LAUNDER (PIPE)
1446 3400-25J-005
ROUGHER CONCENTRATE
COMBINED ROUGHER
COLLECTION LAUNDER (PIPE)
1442 3400-25J-005
ROUGHER CONCENTRATE
COMBINED ROUGHER
COLLECTION LAUNDER (PIPE)
1440 3400-25J-005
ROUGHER CONCENTRATE
COMBINED ROUGHER
COLLECTION LAUNDER (PIPE)
1437 3400-25J-005
ROUGHER CONCENTRATE
COMBINED ROUGHER
COLLECTION LAUNDER (PIPE)
1436 3400-25J-005
SCAV. CONCENTRATE
SCAVENGER CONC. LAUNDER
ROW NO. 6, C2-3410-LA-604
1415 3400-25J-017
ROUGHER CONCENTRATE
ROUGHER CONC. LAUNDER
ROW NO. 5, C2-3410-LA-503
2175 3400-25J-014
ROUGHER CONCENTRATE
ROUGHER CONC. LAUNDER
ROW NO. 6, C2-3410-LA-603
2176 3400-25J-014
FRESH WATER
2177 5100-25J-014
AI
AG
KM
LT
ISSUED FOR CLIENT REVIEW
22-Dec-11
B
RP
ISSUED FOR COMBINED REVIEW
29-Jun-11
A
12/22/2011
K. MUNDY
A. GUNSON
W. BIE
L. TAMELIN
12/22/2011
2:54:50
PM
WBS: 3400
B
PIPING AND INSTRUMENTATION DIAGRAM
FLOTATION
3400-25J-021
CONCENTRATE SAMPLING ROWS 5 & 6
SCAV. CONCENTRATE
SCAVENGER CONC. LAUNDER
ROW NO. 5,
1413 3400-25J-017
C2-3410-LA-504
3410-WR-1670-C1A-1-1/2"-N
3410-WR-1672-C1A-1-1/2"-N
3410-WR-1673-C1A-1-1/2"-N
3410-WR-1671-C1A-1-1/2"-N
PROCESS WATER
1414 3400-25J-017
T3
AFD
T3
OP/CL
3420
32201
ZS
OP/CL
3420
32201
XA
3420
02208
XA
3420
02208
ZS
3420
02212
XA
3420
02212
ZS
OP/CL
3420
02218
XA
3420
02218
ZS
OP/CL
3420
02222
XA
MISMATCH
3420
02223
XA
3420
02222
ZS
3420
02223
ZS
3420
02221
XA
3420
02282
XA
3420
02202
FIT
M
3420
02203
FY
3420
02206
PI
3420
02221
ZS
3420
02201
FIT
3420
02211
PIT
3420
02203
DIC
3420
02210
LIC
3420
02213
PI
3420
02214
FI
3420
02214
FIT
M
3420
02202
FIC
3420
02203
WQI
3420
02203
FIT
3420
02204
FIT
3420
02281
HS
M
3420
02281
II
3420
02282
II
3420
02282 G
TE
3420
02205
PIT
M
M
3420
02203
DIT
3420
02211
PIC
3420
02281 G
TE
3420
02204
FI L, P2
LL, P1
3420
02282
HS
3420
02281 G
TI
3420
02281 H
TI
BRG
FRONT
H, P2
HH, P1
3420
02282 H
TE
3420
02203
FI
3420
02281 H
TE
3420
02205
PI
3420
02215
PIT
3420
02203
DE
3420
02281
XA FAULT
3420
02210
LI
3420
02282 H
TI
BRG
REAR
H, P2
HH, P1
BRG
FRONT
H, P2
HH, P1
3420
02210
LE
3420
02201
FIC
3420
02282 G
TI
3420
02210
LT
3420
02203
DX
3420
02215
PI
TO
FLOOR
H/G REGRIND CYCLONE U/F
SCAV. CONC. COLLECTION
PUMPBOX, C2-3420-BX-504
3387 3400-25J-026
REG. AREA SUMP
REGRIND AREA SPILLAGE
PUMP, C2-3420-PP-529
2388 3400-25J-024
L/G REGRIND CYCLONE U/F
L/G REGRIND MILL FEED
PUMP, C2-3420-PP-530
3389
3400-25J-027
H/G REGRIND MILL
HIGH GRADE REGRIND MILL
NO.1, C2-3420-ML-503
2185 3400-25J-023
RECLEANER TAILING
RECLEANER TAILING
SAMPLER, C2-3410-SA-536
2183 3400-25J-051
MOLY COLLECTOR,
INJECTOR, C2-3910-ZM-576
2186 3900-25J-003
H/G REGRIND CYCLONE U/F
H/G REGRIND MILL NO.2 FEED
PUMPBOX, C2-3420-BX-506
2190 3400-25J-024
H/G REGRIND CYCLONE U/F
H/G REGRIND MILL NO.1 FEED
PUMPBOX, C2-3420-BX-505
2189 3400-25J-023
H/G REGRIND CYCLONE O/F
H/G REGRIND MILL PRODUCT
SAMPLER, C2-3420-SA-541
2187 3400-25J-025
EMERGENCY SUMP RETURN
REGRIND EMERGENCY O/F
SUMP PUMP NO. 1,
3809 3400-25J-032
EMERGENCY SUMP RETURN
REGRIND EMERGENCY O/F
SUMP PUMP NO. 2,
3808 3400-25J-032 H/G REGRIND CYCLONE
H/G REGRIND MILL PRODUCT
SAMPLER, C2-3420-SA-541
3376 3400-25J-025
H/G REGRIND MILL
HIGH GRADE REGRIND MILL
NO.2, C2-3420-ML-504
2184 3400-25J-024
ROUGHER CONCENTRATE
COMBINED ROUGHER CONC.
LAUNDER (PIPE),
1429 3400-25J-005
PROCESS WATER
2180 3900-25J-016
PROCESS WATER
2179 3900-25J-016
L/G REGRIND CYCLONE U/F
L/G REGRIND CYCLONE U/F
LAUNDER, C2-3420-LA-500
3813 3400-25J-026
A-Q
A-Q
A-Q
OP/CL
OP/CL
SLOPE
OP/CL
MIN
TO FLOOR
BRG
REAR
H, P2
HH, P1
MISMATCH
L, P2
LL, P1
J/SP
C2-3420-PP-538
SLOPE
J/SP
TO FLOOR
MIN
L, P2
MISMATCH
MISMATCH
H, P2
L, P2
LL, P2
RSP
MISMATCH
MISMATCH
MISMATCH
MIN
C2-3420-PP-537
AFD
FAULT
MIN
MIN
MIN
MIN
L, P2
SLOPE
MASS
FLOW
TO FLOOR
CONTENTS
10"x8"
FI
C2-3420-CS-505
C2-3420-PP-502
SP-3400
3420
02221
XV
+
C2-3420-BX-502
4"x3"
1-1/2"
10"x8"
3420
02214
FE
+
3420
02201
FE
+
4"x3"
1-1/2"
3420
02202
FV
+
3420
32201
XV
+
C2-3420-LA-502
SP-3400
3420
02212
XV
+
1-1/2"
3420-SL-1195-R1B-22"-N
3420-SL-1196-R1B-22"-N
4"
3420
02208
XV
+
FI
3420
02222
XV
+
3420
02203
FE
+
3420
02223
XV
+
2"x1"
FI
1-1/2"
C2-3420-DI-501
3420-SL-1266-C1B-6"-N
3420-SL-1263-C1B-6"-N
1/2"
C2-3420-PP-503
3420
02201
FV
+
3420
02204
FE
+
3420
02218
XV
+
3420
02202
FE
+
AG
KM
LT
ISSUED FOR CLIENT REVIEW
22-Dec-11
B
RP
ISSUED FOR COMBINED REVIEW
29-Jun-11
A
12/22/2011
K. MUNDY
A. GUNSON
W. BIE
L. TAMELIN
12/22/2011
2:55:45
PM
WBS: 3420
B
PIPING AND INSTRUMENTATION DIAGRAM
REGRIND CIRCUIT
3400-25J-022
HIGH GRADE REGRIND CYCLONES
3420-SL-
-R1B-22"-N
ES
3420-WR-1278-C1A-10"-N
3420-WG-1060-C1A-1"-N
3420-SL-1204-R1A-26"-N
3420-WG-1016-C1A-1"-N
SIZE:
MATERIAL:
MOTOR:
C2-3420-PP-502
HIGH GRADE REGRIND CYCLONE FEED PUMP NO.1
3420-SL-02220-R1B-42"-N
ES
3420-WR-1269-C1A-4"-N
3420-SL-1193-R1A-42"-N
SIZE:
MATERIAL:
CAPACITY:
TRIM: 3420-SL-1187-C1B
C2-3420-BX-502
ROUGHER CONCENTRATE COLLECTION PUMP BOX
ES
3420-SL-1210-R1A-26"-N
ES
3420-WR-1674-C1A-10"-N
3420-WR-1269-C1A-4"-N
3420-WG-1016-C1A-2"-N
SIZE:
MATERIAL:
MOTOR:
C2-3420-PP-503
HIGH GRADE REGRIND CYCLONE FEED PUMP NO.2
3420-SL-1190-R1A-48"-N
SIZE:
C2-3420-LA-502
HIGH GRADE REGRIND CYCLONE UNDERFLOW LAUNDER
SIZE:13 x 508 mm
C2-3420-CS-505
HIGH GRADE REGRIND CIRCUIT CYCLONE CLUSTER
3420-SL-1373-C1A-16"-N
3420-SL-1189-R1A-48"-N
SIZE:
C2-3420-DI-501
HIGH GRADE REGRIND FEED DISTRIBUTOR
3420-SL-1119-R1A-24"-N
3420-RC-1138-C1D-1"-N
ES
3420-SL-1192-R1B-42"-N
ES
ES
V V
V V
V
V
V V
V V
FI
3420-SL-1212-R1A-6"-N
3420-SL-1188-R1B-42"-N
FI FI
FI
FI
FC
D
4
F
B
A
3
2
1 5 6 8
E
7
C
REV.
APPROVED
CHK.
DES.
REV. DATE REVISION DESCRIPTION
CLIENT
LEAD ENGINEER
SCALE DRAWING NUMBER
CHECK DESIGN CHECK DRAWING
DESIGNED BY DRAWN BY
APPROVAL DATE
APPROVAL DATE
APPROVED
CHK.
DES.
REV. DATE REVISION DESCRIPTION REFERENCE DRAWING No.
1:100
0
1:200
5m
10m
0
5m
10m
15m
20m
1:500
10m
0
20m
30m
40m
50m
1:1000
0
100m
50m
1:20
0
0.5m
1m
1.5m
2m
0
1:25
0.5m
1m
1.5m
1:33
1/3
2.5m
2m
0
1m
2m
3m
0
1:50
1m
2m
3m
4m
5m
CAD FILE NAME: P:0CAD000SPEM**
MODEL UPDATED:
DWG. FILE UPDATED:
MANUAL CHANGES MADE: YES NO YES NO YES NO
PROJECT MANAGER
ENGINEERING MANAGER
AREA PROJECT ENGINEER
REFERENCE DRAWINGS
SAFETY SHARE:
APPROVAL DATE
CONTRACT
NO.
SAFETY SHARE :
BA6CVA1.IGR
NOTICE: THIS DRAWING HAS NOT BEEN PUBLISHED AND IS THE SOLE
PROPERTY OF FLUOR AND IS LENT TO THE BORROWER FOR THEIR
CONFIDENTIAL USE ONLY, AND IN CONSIDERATION OF THE LOAN OF THIS
DRAWING, THE BORROWER PROMISES AND AGREES TO RETURN IT UPON
REQUEST AND AGREES THAT IT WILL NOT BE REPRODUCED, COPIED LENT
OR OTHERWISE DISPOSED OF DIRECTLY OR INDIRECTLY, NOR USED FOR
ANY OTHER PURPOSE OTHER THAN WHICH IT IS FURNISHED.
NONE
Apr 2011
240K-C2-
3420-SL- -R1A-28"-N
M
3420
02217
II
3420
02217
XA
3420
02217
HS
FAULT
J/SP
AFD
3420
32202
PI
GLAND SEAL WATER
2954 3900-25J-023
PRODUCT
PRODUCT
3420-SL- -R1B-22"-N
3420-SL- -C1A-16"-N
NOTE 1
M
3420
02207
XV
+
3420
02207 B
HS
3420
02207
ZS
OP/CL
L/R
3420
02207
XA MISMATCH
OP/CL
FI
M
3420
02209
XV
+
3420
02209 B
HS
3420
02209
ZS
OP/CL
L/R
3420
02209
XA MISMATCH
OP/CL
FI
M
3420
02219
XV
+
3420
02219
XA
MISMATCH
3420
02219
ZS
OP/CL
3420
02219 B
HS
OP/CL
L/R
FL
M
3420
02225
XV
+
3420
02225 B
HS
3420
02225
ZS
3420
02225
XA MISMATCH
OP/CL
OP/CL
L/R
M
3420
02220
XV
+
3420
02220
XA MISMATCH
3420
02220 B
HS
3420
02220
ZS
OP/CL
OP/CL
L/R
FI
NOTES:
1. PUMP BOX OUTLETS HAVE REMOVABLE WEAR INSERTS
2. BYPASS ARRANGEMENT TO BE DEFINED
FEED
NOTE 2
T3
V1
T3
AFD
V
3420
02304
FI
3420
02305
PI
3420
02304
FIT
3420
02305
PIT
M
3420
02382
HS
J/SP
3420
02382
XA FAULT
3420
02382
II
MISMATCH
3420
02308
ZS
3420
02308
XA
3420
02316
XA
3420
02316
ZS
3420
02320
XA
3420
02309
XA
3420
02320
ZS
3420
02309
ZS
3420
02306
XA
3420
02306
ZS
OP/CL
3420
02317
ZS
3420
02317
XA
3420
02318
XA
3420
02318
ZS
OP/CL
3420
02312
ZS
3420
02312
XA
MISMATCH
3420
02307
ZS
3420
02307
XA
3420
02319
ZS
OP/CL
3420
02319
XA
3420
02302
DIC
3420
02302
WQI MASS
FLOW
CCTV
3420
02310
LT
MISMATCH
3420
02302
DE
3420
02302
FIT
3420
02301
FIC
3420
02310
LE
3420
32301 A
FI
3420
02383 H
TI
BRG
REAR
H, P2
HH, P1
3420
02301
FIT
3420
02313
PI
M
3420
32381
XA FAULT
3420
02303
YT
3420
02315
PIT
3420
02381
XA FAULT
J/SP
3420
32401 A
PDAH
3420
32382
II
3420
02303
YI
3420
02383
XA FAULT
3420
02314
FI L, P2
LL, P1
AFD
3420
02383
HS
3420
02383
II
M
3420
02302
DIT
3420
02381
HS
3420
02302
FY
3420
32381
HS
J/SP
3420
32401 B
PDAH
3420
02302
FI
3420
02302
DX
3420
02383 G
TE
3420
02381
II
3420
02314
FIT
3420
32301 B
FI L, P2
LL, P1
L, P2
LL, P1
3420
32381
II
3420
32382
HS
3420
02310
LIC
M
3420
02383 H
TE
3420
02383 G
TI
3420
32382
XA
3420
02315
PI
3420
02310
LI
TO
FLOOR
GLAND SEAL WATER
2955
3900-25J-023
H/G REGRIND MILL
ROUGHER CONCENTRATE
COLLECTION PUMPBOX,
2185 3400-25J-022
H/G REGRIND CYCLONE U/F
HIGH GRADE REGRIND FEED
DISTRIBUTOR, C2-3420-DI-501
2189 3400-25J-022
PROCESS WATER
2191 3900-25J-016
H/G REGRIND CYCLONE U/F
H/G REGRIND MILL NO.2,
C2-3420-ML-514
2822 3400-25J-024
PLANT AIR
2192
3900-25J-021
H/G REGRIND CYCLONE U/F
H/G REGRIND MILL PUMPBOX
NO.2, C2-3420-BX-506
2823
3400-25J-024
L, P2
L, P2
LL, P1
MISMATCH
OP/CL
OP/CL
OP/CL OP/CL
OP/CL
OP/CL
OP/CL
TO FLOOR
TO FLOOR
MIN
FAULT
PUMP
PRODUCT
P2
TO FLOOR
J/SP
VENDOR
REDUCER
LUBE SYSTEM
RSP
TO FLOOR
LUBE OIL
MIN
SHAFT BEARING
AUTO GREASE SYSTEM
C2-3420-BX-502
MISMATCH
MISMATCH
MISMATCH
MISMATCH
MISMATCH
MISMATCH
P2
SLOPE
LUBE OIL
L, P2
COOLING FAN
J/SP
BRG
FRONT
H, P2
HH, P1
3420
02301
FV
+
3420
02312
XV
+
24"x14"
1-1/2"
3420
02314
FE
+
FI
1/2"x1/4"
3420
02317
XV
+
3420
02318
XV
+
4"x1-1/2"
FI
1-1/2"
C2-3420-BN-503 TO 506
3420
02302
FE
+
10"x16"
3420
02306
XV
+
C2-3420-PP-520
1-1/2"
FI
3420
02316
XV
+
ES
3420
02304
FE
+
V
V
FI FI
FI
FI
FI C2-3420-PP-519
FI
3420
02309
XV
+
3420
02320
XV
+
3420
02307
XV
+
SIZE:
MATERIAL:
MOTOR:
C2-3420-PP-519
HIGH GRADE REGRIND MILL FEED PUMP
3420
02301
FE
+
V
C2-3420-BX-505
C2-3420-ML-503
3420
02308
XV
+
24"x14"
3420
02319
XV
+
C2-3420-ZM-501
SIZE:
C2-3420-ZM-501
VERTIMILL SCREW SUPPORT STAND
1-1/2"
NC
AG
KM
LT
ISSUED FOR CLIENT REVIEW
22-Dec-11
B
RP
ISSUED FOR COMBINED REVIEW
29-Jun-11
A
12/22/2011
K. MUNDY
A. GUNSON
W. BIE
L. TAMELIN
12/21/2011
5:49:10
PM
WBS: 3420
B
PIPING AND INSTRUMENTATION DIAGRAM
REGRIND CIRCUIT
3400-25J-023
HIGH GRADE REGRIND MILL NO. 1
3420-WG-1055-C1A-2"-N
ES
ES
ES
3420-SL-1362-C1B-10"-N
3420-SL-1195-R1B-22"-N
3420-SL-1784-C1B-1-1/2"-N
SIZE: VTM 1500
MATERIAL:
MOTOR: 1120.00 kW
C2-3420-ML-503
HIGH GRADE REGRIND MILL NO.1
3420-WR-1267-C1A-4"-N
3420-AP-1254-C1A-1/2"-N
3420-SL-1204-R1A-26"-N
3420-SL-1200-R1A-24"-N
SIZE:
MATERIAL:
MOTOR:
C2-3420-PP-520
HIGH GRADE REGRIND MILL NO.1 FEED PUMP (AFD)
3420-SL-1202-R1A-14"-N
SIZE:10 t
MATERIAL:
CAPACITY:
TRIM:
C2-3420-BN-503 TO 506
BALL BUCKET
SIZE:
MATERIAL:
CAPACITY:
TRIM:C1B
C2-3420-BX-505
HIGH GRADE REGRIND MILL FEED PUMPBOX NO.1
ES
ES
3420-WF-1675-C1A-3"-N
3420-SL-1201-R1A-14"-N
3420-SL-1207-R1A-16"-N
FC
3420-SL-1203-R1A-16"-N
3420-SL-1199-R1A-24"-N
3420-WG-1059-C1A-1"-N
D
4
F
B
A
3
2
1 5 6 8
E
7
C
REV.
APPROVED
CHK.
DES.
REV. DATE REVISION DESCRIPTION
CLIENT
LEAD ENGINEER
SCALE DRAWING NUMBER
CHECK DESIGN CHECK DRAWING
DESIGNED BY DRAWN BY
APPROVAL DATE
APPROVAL DATE
APPROVED
CHK.
DES.
REV. DATE REVISION DESCRIPTION REFERENCE DRAWING No.
1:100
0
1:200
5m
10m
0
5m
10m
15m
20m
1:500
10m
0
20m
30m
40m
50m
1:1000
0
100m
50m
1:20
0
0.5m
1m
1.5m
2m
0
1:25
0.5m
1m
1.5m
1:33
1/3
2.5m
2m
0
1m
2m
3m
0
1:50
1m
2m
3m
4m
5m
CAD FILE NAME: P:0CAD000SPEM**
MODEL UPDATED:
DWG. FILE UPDATED:
MANUAL CHANGES MADE: YES NO YES NO YES NO
PROJECT MANAGER
ENGINEERING MANAGER
AREA PROJECT ENGINEER
REFERENCE DRAWINGS
SAFETY SHARE:
APPROVAL DATE
CONTRACT
NO.
SAFETY SHARE :
BA6CVA1.IGR
NOTICE: THIS DRAWING HAS NOT BEEN PUBLISHED AND IS THE SOLE
PROPERTY OF FLUOR AND IS LENT TO THE BORROWER FOR THEIR
CONFIDENTIAL USE ONLY, AND IN CONSIDERATION OF THE LOAN OF THIS
DRAWING, THE BORROWER PROMISES AND AGREES TO RETURN IT UPON
REQUEST AND AGREES THAT IT WILL NOT BE REPRODUCED, COPIED LENT
OR OTHERWISE DISPOSED OF DIRECTLY OR INDIRECTLY, NOR USED FOR
ANY OTHER PURPOSE OTHER THAN WHICH IT IS FURNISHED.
NONE
Apr 2011
240K-C2-
M
3420
02307 B
HS
OP/CL
L/R
3420
02317 B
HS
OP/CL
L/R
V3
V3 M
ES
ES
NOTE 2
NOTE 1
NOTES:
1. PUMPBOX OUTLETS HAVE REMOVABLE WEAR INSERTS
2. 10" SQUARE UNLOAD PORT
3. BALL ADDITION POINT
NOTE 3
T3
T8
OP/CL
V
REDUCER
LUBE SYSTEM
SHAFT BEARING
AUTO GREASE SYSTEM
3420
02418
ZS
3420
02482
XA
3420
02482
II
3420
02482
HS
J/SP
3420
02404
LI
H, P2
L, P2
LL, P1
3420
02404
LIT
3420
02404
LE
3420
02410
LI
3420
02410
LT
3420
02403
YI
3420
02410
LE
3420
32581
XA FAULT
3420
02402
DIC
3420
02403
YT
3420
02401
FIC
3420
32581
II
3420
02402
WQI MASS
FLOW
CCTV
3420
02401
FIT
3420
32582
XA
3420
02402
FY
M
3420
02483 H
TE
3420
32582
II
3420
02402
FI
M
3420
02483 G
TE
3420
32582
HS
3420
02415
PIT
3420
32581
HS
J/SP
3420
02481
II
3420
02481
XA
J/SP
FAULT
3420
32501 A
FI
3420
02481
HS
L, P2
LL, P1
3420
32501 B
FI
L, P2
LL, P1
L, P2
LL, P1
3420
02402
FIT
MISMATCH
3420
02402
DIT
3420
02402
DE
3420
02402
DX
AFD
3420
02413
PI
3420
02483
XA FAULT
M
3420
02483
II
3420
32601 B
PDAH
3420
32601 A
PDAH
3420
02414
FI
3420
02483
HS
3420
02415
PI
3420
02410
LIC
3420
02414
FIT
3420
02483 H
TI
BRG
REAR
H, P2
HH, P1
3420
02483 G
TI
3420
02406
ZS
OP/CL
3420
02406
XA
MISMATCH
3420
02417
ZS
3420
02417
XA
MISMATCH
3420
02407
XA
3420
02412
XA
3420
02407
ZS
3420
02412
ZS
OP/CL
3420
02416
ZS
3420
02416
XA
3420
02419
XA
MISMATCH
3420
02418
XA
3420
02419
ZS
OP/CL
TO
FLOOR
GLAND SEAL WATER
2956
3900-25J-023
REG. SUMP CONTENTS
ROUGHER CONCENTRATE
COLLECTION PUMPBOX,
2388 3400-25J-022
PLANT AIR
2389
3900-25J-021
PROCESS WATER
2391 3900-25J-016
H/G REGRIND MILL
ROUGHER CONCENTRATE
COLLECTION PUMPBOX,
2184 3400-25J-022
H/G REGRIND CYCLONE U/F
HIGH REGRIND MILL FEED
PUMP, C2-3420-PP-519
2822 3400-25J-023
H/G REGRIND CYCLONE U/F
HIGH GRADE REGRIND FEED
DISTRIBUTOR
2190 3400-25J-022
H/G REGRIND CYCLONE U/F
HIGH GRADE REGRIND MILL
FEED PUMP, C2-3420-PP-519
2823
3400-25J-023
RSP
C2-3420-BX-502
TO FLOOR
OP/CL
COOLING FAN
NOTE 1
LUBE OIL
PUMP
LUBE OIL
SLOPE
MIN
VENDOR
TO FLOOR
L, P2
P2
P2
FAULT
J/SP
NOTE 2
J/SP
BRG
FRONT
H, P2
HH, P1
TO FLOOR
MIN
FAULT
OP/CL
MISMATCH
MISMATCH
MISMATCH
3420
02417
XV
+
3420
02419
XV
+
3420
02407
XV
+
FI
V
V
3420-SL-1207-R1A-24"-N
FI
FI
C2-3420-PP-529
SIZE:
MATERIAL:
MOTOR:
C2-3420-PP-529
HIGH GRADE REGRIND AREA SPILLAGE PUMP
3420
02414
FE
+
10"x16"
4"x1-1/2"
3420
02406
XV
+
3420
02416
XV
+
3420
02418
XV
+
FI
C2-3420-BN-507 TO 510
C2-3420-PP-521
C2-3420-BX-506
C2-3420-ML-504
FI
1/2"x1/4"
1-1/2"
3420
02402
FE
+
1-1/2"
FI
V
24"x14"
3420
02401
FE
+
3420
02401
FV
+
3420
02412
XV
+
FI
1-1/2"
AG
KM
LT
ISSUED FOR CLIENT REVIEW
22-Dec-11
B
RP
ISSUED FOR COMBINED REVIEW
29-Jun-11
A
12/22/2011
K. MUNDY
A. GUNSON
W. BIE
L. TAMELIN
12/22/2011
3:12:55
PM
WBS: 3420
B
PIPING AND INSTRUMENTATION DIAGRAM
REGRIND CIRCUIT
3400-25J-024
HIGH GRADE REGRIND MILL NO. 2
3420-WR-1268-C1A-4"-N
3420-SL-1196-R1B-22"-N
ES
ES
SIZE:10 t
MATERIAL:
CAPACITY:
TRIM:
C2-3420-BN-507 TO 510
BALL BUCKET
SIZE:
MATERIAL:
CAPACITY:21.0 m^3
TRIM:3420-SL-1206-C1B
C2-3420-BX-506
HIGH GRADE REGRIND MILL FEED PUMPBOX NO.2
3420-WF-1676-C1A-3"-N
ES
3420-WG-1054-C1A-2"-N
3420-AP-1255-C1A-1/2"-N
3420-SL-1785-C1B-1-1/2"-N
3420-SL-1211-C1B-10"-N
SIZE:
MATERIAL:
MOTOR:
C2-3420-PP-521
HIGH GRADE REGRIND MILL NO.2 FEED PUMP (AFD)
SIZE: VTM 1500
MATERIAL:
MOTOR: 1120.00 kW
C2-3420-ML-504
HIGH GRADE REGRIND MILL NO.2
ES
3420-SL-1208-R1A-24"-N
ES
ES
3420-SL-1210-R1A-26"-N
D
4
F
B
A
3
2
1 5 6 8
E
7
C
REV.
APPROVED
CHK.
DES.
REV. DATE REVISION DESCRIPTION
CLIENT
LEAD ENGINEER
SCALE DRAWING NUMBER
CHECK DESIGN CHECK DRAWING
DESIGNED BY DRAWN BY
APPROVAL DATE
APPROVAL DATE
APPROVED
CHK.
DES.
REV. DATE REVISION DESCRIPTION REFERENCE DRAWING No.
1:100
0
1:200
5m
10m
0
5m
10m
15m
20m
1:500
10m
0
20m
30m
40m
50m
1:1000
0
100m
50m
1:20
0
0.5m
1m
1.5m
2m
0
1:25
0.5m
1m
1.5m
1:33
1/3
2.5m
2m
0
1m
2m
3m
0
1:50
1m
2m
3m
4m
5m
CAD FILE NAME: P:0CAD000SPEM**
MODEL UPDATED:
DWG. FILE UPDATED:
MANUAL CHANGES MADE: YES NO YES NO YES NO
PROJECT MANAGER
ENGINEERING MANAGER
AREA PROJECT ENGINEER
REFERENCE DRAWINGS
SAFETY SHARE:
APPROVAL DATE
CONTRACT
NO.
SAFETY SHARE :
BA6CVA1.IGR
NOTICE: THIS DRAWING HAS NOT BEEN PUBLISHED AND IS THE SOLE
PROPERTY OF FLUOR AND IS LENT TO THE BORROWER FOR THEIR
CONFIDENTIAL USE ONLY, AND IN CONSIDERATION OF THE LOAN OF THIS
DRAWING, THE BORROWER PROMISES AND AGREES TO RETURN IT UPON
REQUEST AND AGREES THAT IT WILL NOT BE REPRODUCED, COPIED LENT
OR OTHERWISE DISPOSED OF DIRECTLY OR INDIRECTLY, NOR USED FOR
ANY OTHER PURPOSE OTHER THAN WHICH IT IS FURNISHED.
NONE
Apr 2011
240K-C2-
3420-SL-1202-R1A-14"-N
3420-SL-1209-R1A-16"-N
3420-SL-1212-R1A-6"-N
FC
C2-3420-BX-502
PRODUCT
V1
M
3420
02407 B
HS
OP/CL
OP/CL
L/R
OP/CL
3420
02417 B
HS
L/R
V3
V3
M
ES
ES
NOTES:
1. PUMPBOX OUTLETS HAVE REMOVABLE WEAR INSERTS
2. 10" SQUARE UNLOAD PORT
3. BALL ADDITION POINT
NOTE 3
D
4
F
B
A
3
2
1 5 6 8
E
7
C
REV.
APPROVED
CHK.
DES.
REV. DATE REVISION DESCRIPTION
CLIENT
LEAD ENGINEER
SCALE DRAWING NUMBER
CHECK DESIGN CHECK DRAWING
DESIGNED BY DRAWN BY
APPROVAL DATE
APPROVAL DATE
APPROVED
CHK.
DES.
REV. DATE REVISION DESCRIPTION REFERENCE DRAWING No.
1:100
0
1:200
5m
10m
0
5m
10m
15m
20m
1:500
10m
0
20m
30m
40m
50m
1:1000
0
100m
50m
1:20
0
0.5m
1m
1.5m
2m
0
1:25
0.5m
1m
1.5m
1:33
1/3
2.5m
2m
0
1m
2m
3m
0
1:50
1m
2m
3m
4m
5m
CAD FILE NAME: P:0CAD000SPEM**
MODEL UPDATED:
DWG. FILE UPDATED:
MANUAL CHANGES MADE: YES NO YES NO YES NO
PROJECT MANAGER
ENGINEERING MANAGER
AREA PROJECT ENGINEER
REFERENCE DRAWINGS
SAFETY SHARE:
APPROVAL DATE
CONTRACT
NO.
SAFETY SHARE :
BA6CVA1.IGR
NOTICE: THIS DRAWING HAS NOT BEEN PUBLISHED AND IS THE SOLE
PROPERTY OF FLUOR AND IS LENT TO THE BORROWER FOR THEIR
CONFIDENTIAL USE ONLY, AND IN CONSIDERATION OF THE LOAN OF THIS
DRAWING, THE BORROWER PROMISES AND AGREES TO RETURN IT UPON
REQUEST AND AGREES THAT IT WILL NOT BE REPRODUCED, COPIED LENT
OR OTHERWISE DISPOSED OF DIRECTLY OR INDIRECTLY, NOR USED FOR
ANY OTHER PURPOSE OTHER THAN WHICH IT IS FURNISHED.
NONE
Apr 2011
240K-C2-
3420
02512
XV
+
FI
V1
MIN
TO
FLOOR
TO FLOOR
SUMP
T3
1"x1-1/4"
3420
02515
PI
3420
02514
FI
3420
02515
PIT
3420
02514
FIT
M
L, P2
LL, P1
L, P2
3420
02514
FE
+
ES
3"x1"
3"x2"
T3
2"x1-1/4"
3420
02505
PI
3420
02504
FI
3420
02505
PIT
3420
02504
FIT
M
L, P2
LL, P1
L, P2
3420
02504
FE
+
ES
3"x2"
3"x1-1/2"
3420
02507
XV
+
FI
3420
02517
XV
+
FI
MIN
MIN
3420
02518
XV
+
FI
TO
FLOOR
3420
02506
PI
3420
02582
II
3420
02582
XA
3420
02582
HS
J/SP
AFD
3420
02508
XV
+
FI
MIN
3420
02581
II
3420
02581
XA
3420
02581
HS
J/SP
AFD
3420
02502
WQI
3420
02502
FY
3420
02502
DIC
3420
02502
FI
3420
02502
FIT
3420
02502
DIT
3420
02502
DE
M
3420
02513
PI
3420
02502
DX
ES
3420
02502
FE
+
3420
02510
LIC
3420
02510
LT
3420
02510
LE
3420
02510 A
LI
P.O NO.:
VENDOR DWG NO.:
VENDOR:
3420
02501
FIC
M
3420
02501
FIT
ES
3420
02501
FE
+
3420
02501
FV
+
BU
BU
6"x4" 6"x4"
MULTIPLEXER PSA
12"
1/2" BA
1-1/2" PL
1-1/2" PL
1-1/2" PL
1-1/2" PL
1-1/2"
PL
2"x1"
V V
V
C2-3420-SA-542
C2-3420-SA-541
C2-3420-AZ-500
C2-3420-PP-536
C2-3420-PP-535
C2-3420-BX-503
C2-3420-SA-543
TO
FLOOR
3420-WR-1276-C1A-6"-N
24"x12"
24"x12"
H/G REGRIND CYCLONE O/F
H/G REGRIND CYCLONE
CLUSTER, C2-3420-CS-505
2187 3400-25J-022
COLUMN FEED
COLUMN CELL FEED
DISTRIBUTOR, C2-3430-DI-503
2194 3400-25J-033
L/G REGRIND CYCLONE O/F
L/G REGRIND CYCLONE
CLUSTER, C2-3420-CS-506
2467 3400-25J-026
FRESH WATER
2472 5100-25J-014
PROCESS WATER
2476
3900-25J-014
COLUMN FEED
COL. TAILING COLLECTION
PUMPBOX, C2-3430-BX-511
2479 3400-25J-043
COLUMN FEED
COLUMN FEED/ TAILING
ANALYZER, C2-3430-AZ-506
2481 3400-25J-042
SIZE:
C2-3420-SA-542
LOW GRADE REGRIND CYCLONE OVERFLOW SAMPLER
SIZE:
C2-3420-SA-541
HIGH GRADE REGRIND MILL PRODUCT SAMPLER
SIZE:
MATERIAL:
CAPACITY:
TRIM:
C2-3420-BX-503
COLUMN CELL FEED PUMPBOX NO. 1
SIZE:
MATERIAL:
MOTOR:
C2-3420-PP-535
COLUMN CELL FEED PUMP
SIZE:
MATERIAL:
MOTOR:
C2-3420-PP-536
COLUMN CELL FEED PUMP
SIZE:
C2-3420-SA-543
COMBINED COLUMN FEED SAMPLER NO.1
SIZE:
C2-3420-AZ-500
HIGH/LOW GRADE REGRIND PARTICLE SIZE ANALYZER
3420-WG-1097-C1A-1-1/2"-N
3420-SL-1216-R1A-4"-N
3420-WF-1410-C1A-2"-N
3420-SL-1218-R1A-30"-N
3420-SL-1213-R1A-42"-N
3420-SL-1217-R1A-30"-N
3420-WF-1098-C1A-1"-N
3420-SL-1219-R1A-24"-N
3420-SL-1220-R1A-24"-N
C1A C1B
3420-SL-1221-C1B-2"-N
3420-SL-1222-R1A-24"-N
3"
H, P2
L, P2
LL, P1
AG
KM
LT
ISSUED FOR CLIENT REVIEW
22-Dec-11
B
RP
ISSUED FOR COMBINED REVIEW
29-Jun-11
A
12/22/2011
K. MUNDY
A. GUNSON
W. BIE
L. TAMELIN
12/22/2011
3:11:29
PM
WBS: 3420
B
PIPING AND INSTRUMENTATION DIAGRAM
REGRIND CIRCUIT
3400-25J-025
COLUMN CELL FEED PUMPS SH. 1 OF 2
3420-SL-1232-R1A-42"-N
3420-SL-1225-R1A-42"-N
FAULT
FAULT
3420
02512
ZS
3420
02512
XA
OP/CL
3420
02517
ZS
3420
02517
XA
OP/CL
3420
02507
XA
3420
02507
ZS
OP/CL
3420
02508
ZS
3420
02508
XA
3420
02518
XA
3420
02518
ZS
MISMATCH
MISMATCH
MISMATCH
MISMATCH
GLAND SEAL WATER
3375 3900-25J-023
H/G REGRIND CYCLONE
H/G REGRIND CYCLONE FEED
PUMPS, C2-3420-PP-503/503
3376 3400-25J-022
3420-WR-1677-C1A-2"-N
3420
02509
XV
+
3420
02509
ZS
3420
02509
XA
OP/CL
MISMATCH
3420
02519
XV
+
3420
02519
ZS
3420
02519
XA
OP/CL
MISMATCH
OP/CL
FI
FI
MISMATCH
COLUMN FEED
COL. CELL FEED PUMPBOX
NO. 2, C2-3420-BX-403
3502
3400-25J-032
RSP
C2-3420-DI-403
3420
02521
XV
+
3420
02521
XA
3420
02521
ZS
MISMATCH
OP/CL
3420
02522
XA
MISMATCH
3420
02522
ZS
OP/CL
3420
02522
XV
+
SIZE:30 m3
C2-3420-DI-403
COLUMN CELL FEED PUMPBOX DISTRIBUTOR
3420-WF-1409-C1A-2"-N
3420-SL-1188-R1B-42"-N
3420-SL-1193-R1A-42"-N
3420-SL-1381-R1A-12"-N
3420-SL-1376-R1A-12"-N
3420-SL-1389-R1A-6"-N
3420-RF-1037-C1D-1"-N
1ST CLEANER CONC.
CL. SCAV./ 1ST CL. INSTREAM
ANALYZER, C2-3430-AZ-509
2728 3400-25J-053
1ST CLEANER CONC.
FIRST CLEANER CONC.
SAMPL. NO.2, C2-3410-SA-533
2738 3400-25J-053
1ST CLEANER CONC.
FIRST CLEANER CONC. SAMP.
NO.1, C2-3410-SA-530
2740 3400-25J-053
3420-SL-1214-R1A-30"-N
3420-WR-1679-C1A-6"-N
3420-SL-1226-R1A-30"-N
3420-SL-1215-C1B
C.S. RUBBER LINED
43 M3
FI
FI
FC
MOLY COLLECTOR
INJECTOR, C2-3410-ZM-575
2360 3900-25J-003
3420-RC-1087-C1D-1"-N
L/G REGRIND CYCL. FEED
L/G REGRING CYCLONE FEED
PUMPS, C2-3420-PP-524/525
3796 3400-25J-026
3420-SL-1236-R1B-42"-N
FEED
M
M
3420
02507 B
HS
3420
02517 B
HS
OP/CL
L/R
OP/CL
L/R
V3
V3
3420
02521 B
HS
OP/CL
L/R M
M
3420
02522 B
HS
OP/CL
L/R
V3
V3
M
M
3420
02509 B
HS
3420
02519 B
HS
V3
V3
OP/CL
OP/CL
L/R
L/R
ES ES
ES
ES
ES
ES
FROTHER ALCOHOL
INJECTOR, C2-3910-ZM-687
2364 3900-25J-006
PROCESS WATER
2482 3900-25J-016
D
4
F
B
A
3
2
1 5 6 8
E
7
C
REV.
APPROVED
CHK.
DES.
REV. DATE REVISION DESCRIPTION
CLIENT
LEAD ENGINEER
SCALE DRAWING NUMBER
CHECK DESIGN CHECK DRAWING
DESIGNED BY DRAWN BY
APPROVAL DATE
APPROVAL DATE
APPROVED
CHK.
DES.
REV. DATE REVISION DESCRIPTION REFERENCE DRAWING No.
1:100
0
1:200
5m
10m
0
5m
10m
15m
20m
1:500
10m
0
20m
30m
40m
50m
1:1000
0
100m
50m
1:20
0
0.5m
1m
1.5m
2m
0
1:25
0.5m
1m
1.5m
1:33
1/3
2.5m
2m
0
1m
2m
3m
0
1:50
1m
2m
3m
4m
5m
CAD FILE NAME: P:0CAD000SPEM**
MODEL UPDATED:
DWG. FILE UPDATED:
MANUAL CHANGES MADE: YES NO YES NO YES NO
PROJECT MANAGER
ENGINEERING MANAGER
AREA PROJECT ENGINEER
REFERENCE DRAWINGS
SAFETY SHARE:
APPROVAL DATE
CONTRACT
NO.
SAFETY SHARE :
BA6CVA1.IGR
NOTICE: THIS DRAWING HAS NOT BEEN PUBLISHED AND IS THE SOLE
PROPERTY OF FLUOR AND IS LENT TO THE BORROWER FOR THEIR
CONFIDENTIAL USE ONLY, AND IN CONSIDERATION OF THE LOAN OF THIS
DRAWING, THE BORROWER PROMISES AND AGREES TO RETURN IT UPON
REQUEST AND AGREES THAT IT WILL NOT BE REPRODUCED, COPIED LENT
OR OTHERWISE DISPOSED OF DIRECTLY OR INDIRECTLY, NOR USED FOR
ANY OTHER PURPOSE OTHER THAN WHICH IT IS FURNISHED.
NONE
Apr 2011
240K-C2-
3420
02682
XA
FI
3420
02682
II
SLOPE
L, P2
LL, P1
SP-3400
SP-3400
3420
02621
XV
+
3420
02622
XV
+
3420
02681
XA
3420
32601
XV
+
3420
02681
II
T3
T3
3420
02617
XV
+
3420
02607
XV
+
3420
02612
XV
+
3420
02602
FV
+
3420
02602
FE
+
L, P2
3420
02615
PI
3420
02615
PIT
TO FLOOR
C2-3420-CS-506
MIN
MIN
C2-3420-DI-502
2"x1"
MIN
C2-3420-BX-504
C2-3420-PP-524
SLOPE
M
3420
02608
XV
+
TO FLOOR
C2-3420-PP-525
1-1/2"
MIN
FI
1-1/2"
MIN
FI
28" X 26"
RED. FLG.
4"x3"
MIN
4"x3"
TO FLOOR
J/SP
AFD
J/SP
FI
MASS
FLOW
3420
02618
XV
+
1/2"
3420
02604
FE
+
BRG
REAR
H, P2
HH, P1
M
TO
FLOOR
VENDOR
M
3420
02601
FIT
3420
02601
FIC
3420
02611
PIC
3420
02611
PIT
L, P2
LL, P1
3420
02604
FI
3420
02604
FIT
3420
02606
PI
H, P2
L, P2
LL, P2
L, P2
3420
02610
LIC
4"
3420
02610 A
LI
3420
02610
LT
3420
02605
PI
3420
02610
LE
3420
02605
PIT
3420
02602
FIT
3420
02602
FIC
3420
02614
FI
3420
02614
FIT
1-1/2"
3420
02603
DX
10"x8"
3420
02603
WQI
10"x8"
3420
02603
FY
3420
02603
DIC
3420
02603
FI
FI
3420
02603
DIT
FI
3420
02603
DE
3420
02603
FIT
3420
02613
PI
1-1/2"
3420
02681 G
TE
3420
02681 G
TI
3420
02681 H
TE
BRG
FRONT
H, P2
HH, P1
3420
02681 H
TI
M
BRG
REAR
H, P2
HH, P1
3420
02609
XV
+
BRG
FRONT
H, P2
HH, P1
3420
02603
FE
+
3420
02682 H
TI
3420
02601
FV
+
3420
02682 G
TI
M
AFD
3420
02682 H
TE
3420
02682 G
TE
3420
02601
FE
+
3420
02682
HS
3420
02614
FE
+
3420
02681
HS
3420
02619
XV
+
SLOPE
C2-3420-LA-500
SIZE:
C2-3420-LA-500
LOW GRADE REGRIND CYCLONE UNDERFLOW LAUNDER
REGRIND MILL PRODUCT
L/G REGRIND MILL NO.2,
C2-3420-ML-506
2401 3400-25J-031
REG. AREA SUMP CONT.
REGRIND AREA SPILLAGE
PUMP, C2-3420-PP-531
2402 3400-25J-031
L/G REGRIND CYCLONE U/F
L/G REGRIND MILL NO.1 FEED
PUMPBOX, C2-3420-BX-510
2400 3400-25J-031
L/G REGRIND CYCLONE U/F
L/G REGRIND MILL NO.2 FEED
PUMPBOX, C2-3420-BX-513
2392 3400-25J-027
REGRIND MILL PRODUCT
L/G REGRIND MILL NO.1,
C2-3420-ML-505
2395 3400-25J-027
MOLY COLLECTOR
INJECTOR C2-3910-ZM-574
2359 3900-25J-003
SCAV. CONCENTRATE
SCAVENGER CONCENTRATE
PIPE LAUNDER
1430 3400-25J-005
3420-RC-1020-C1D-1"-N
L/G REGRIND CYCLONE O/F
L/G REGRIND CYCLONE O/F
SAMPLER, C2-3420-SA-542
2467 3400-25J-025
C2-3420-SA-542
3420-WG-1053-C1A-2"-N
ES
ES
ES
3420-SL-1228-R1A-48"-N
SIZE:
C2-3420-DI-502
LOW GRADE REGRIND FEED DISTRIBUTOR
ES
SIZE:
MATERIAL:
MOTOR:
C2-3420-PP-524
LOW GRADE REGRIND CYCLONE FEED PUMPS
3420-SL-1233-R1B-28"-N
3420-SL-1234-R1B-20"-N
ES
SIZE:
MATERIAL:
CAPACITY:
TRIM:
C2-3420-BX-504
SCAVENGER CONCENTRATE COLLECTION PUMP BOX
3420-SL-1250-C1A-20"-N
3420-SL-1244-R1A-20"-N
3420-SL-1232-R1A-42"-N
3420-SL-1124-R1A-30"-N
3420-WR-1274-C1A-4"-N
3420-SL-1229-R1A-48"-N
3420-SL-1384-R1A-12"-N
SIZE:13 x 508 mm
C2-3420-CS-506
LOW GRADE REGRIND CIRCUIT CYCLONE CLUSTER
3420-SL-1231-R1B-42"-N
3420-SL-1230-R1B-42"-N
3420-SL-1235-R1B-20"-N
3420-WR-1274-C1A-4"-N
3420-RC-1088-C1D-1"-N
SIZE:
MATERIAL:
MOTOR:
C2-3420-PP-525
LOW GRADE REGRIND CYCLONE FEED PUMPS
3420-WG-1058-C1A-1"-N
3420-WR-1680-C1A-10"-N
AG
KM
LT
ISSUED FOR CLIENT REVIEW
22-Dec-11
B
RP
ISSUED FOR COMBINED REVIEW
29-Jun-11
A
12/22/2011
K. MUNDY
A. GUNSON
W. BIE
L. TAMELIN
12/22/2011
10:19:17
AM
WBS: 3420
B
PIPING AND INSTRUMENTATION DIAGRAM
REGRIND CIRCUIT
3400-25J-026
LOW GRADE REGRIND CYCLONES
3420
02612
XA
3420
02612
ZS
3420
02617
ZS
3420
02617
XA
OP/CL
3420
02607
ZS
3420
02607
XA
OP/CL
3420
02608
ZS
3420
02608
XA
OP/CL
3420
02609
ZS
3420
02609
XA
3420
32601
ZS
3420
32601
XA
3420
02622
ZS
3420
02621
ZS
3420
02622
XA
3420
02621
XA
OP/CL
OP/CL
3420
02619
XA
3420
02619
ZS
FAULT
FAULT
3420
02618
ZS
3420
02618
XA
OP/CL
OP/CL
OP/CL
OP/CL
MISMATCH
MISMATCH
MISMATCH
MISMATCH
MISMATCH
MISMATCH
MISMATCH
MISMATCH
MISMATCH
A-N
A-N
MISMATCH
A-N
OP/CL
GLAND SEAL WATER
2957 3900-25J-023
PSP
V V
V V
V V
V
V
V
V
ES
ES
FI
PRIMARY COLLECTOR
INJECTOR C2-3910-ZM-596
2351 3900-25J-001
CLEANER SCAV. CONC.
CLEANER SCAV. CONC.
SAMPLER, C2-3430-SA-532
2739 3400-25J-053
CLEANER SCAV. CONC.
CL. SCAV. CONC. SAMPLER
NO.1, C2-3430-SA-532
2741 3400-25J-053
CLEANER SCAV. CONC.
CL. SCAV./ 1ST CL. INSTREAM
ANALYZER, C2-3430-AZ-509
2729 3400-25J-053
CLEANER SCAV. CONC.
CL. SCAV./ 1ST CL. INSTREAM
ANALYZER, C2-3430-AZ-509
2727 3400-25J-053
3420-SL-1252-R1A-6"-N
3420-SL-1388-R1A-6"-N
3420-SL-1390-R1A-6"-N
3420-SL-1377-R1A-12"-N
3420-WR-1681-C1A-10"-N
FI FI
FI
FC
FC
PROCESS WATER
2468 3900-25J-016
L/G REGRIND CYCLONE O/F
L/G REGRIND CYCLONE O/F
SAMPLER, C2-3420-SA-542
3796 3400-25J-025
3420
02623
XA MISMATCH
3420
02623
ZS
OP/CL
3420
02620
ZS
3420
02620
XA
MISMATCH
OP/CL
FI
3420
02620
XV
+
3420
02623
XV
+
FI
3420-SL-1236-R1B-42"-N
C2-3420-SA-542
H/G REGRIND CYCLONE U/F
H/G REGRING CYCLONE U/F
LAUNDER, C2-3420-LA-502
3387 3400-25J-022
3420
02625
XV
+
FI
3420
02625
XA
MISMATCH
3420
02625
ZS
OP/CL
3420-SL- -R1B-22"-N
PROCESS WATER
2466 3900-25J-016
L/G REGRIND CYCLONE U/F
ROUGHER CONC.
COLLECTION PUMPBOX,
3813 3400-25J-022
C2-3420-BX-502
3420
32602
PI
M
3420
32601 B
HS
OP/CL
L/R
M
3420
02620 B
HS
OP/CL
L/R
V3
V3
M
M
3420
02619 B
HS
OP/CL
L/R
V3
3420
02609 B
HS
OP/CL
L/R
V3
M
M
3420
02617 B
HS
OP/CL
L/R
3420
02607 B
HS
OP/CL
L/R
V3
V3
ES
ES
ES
ES
ES
ES
M
ES
V3
3420
02625 B
HS
OP/CL
L/R
NOTE 1
3420-SL-1233-R1B-28"-N
NOTES:
1. PUMPBOX OUTLETS HAVE REMOVABLE WEAR INSERTS
2. BYPASS ARRANGEMENTS TO BE DEFINED
NOTE 2
T3
T3
SHAFT BEARING
AUTO GREASE SYSTEM
V
3420
02782
HS
J/SP
3420
02782
XA
3420
02782
II
3420
02705
PIT
M
3420
02704
FI
3420
02705
PI
L, P2
3420
02704
FIT
3420
02721
ZS
3420
02721
XA
3420
02701
FIC
RSP
3420
02715
PI
3420
02702
FIT
3420
02783 G
TI
3420
32882
II
3420
32801 A
FI
3420
02702
WQI MASS
FLOW
M
CCTV
3420
02783
II
3420
32882
XA
M
3420
02703
YT
3420
02783 H
TI
BRG
REAR
H, P2
HH, P1
3420
02714
FI L, P2
LL, P1
3420
02714
FIT
3420
02710
LE
3420
02781
HS
3420
32881
II
3420
02702
DIC
3420
02783 H
TE
3420
02702
FI
3420
02713
PI
3420
02702
DE
3420
02703
YI
3420
02783
XA FAULT
3420
02710
LT
3420
32881
XA FAULT
3420
02701
FIT
3420
02783
HS
3420
32881
HS
J/SP
3420
02710
LIC
M
3420
02781
XA FAULT
AFD
3420
02702
DIT
3420
32901 A
PDAH
3420
02710 A
LI
3420
02702
FY
3420
02715
PIT
3420
02783 G
TE
3420
32901 B
PDAH
3420
32882
HS
3420
02781
II
3420
32801 B
FI L, P2
LL, P1
L, P2
LL, P1
3420
02702
DX
3420
02708
ZS
3420
02708
XA
3420
02712
ZS
OP/CL
3420
02712
XA
3420
02707
ZS
OP/CL
3420
02707
XA
MISMATCH
3420
02717
ZS
3420
02718
ZS
3420
02718
XA MISMATCH
3420
02719
XA
3420
02719
ZS
3420
02717
XA
3420
02716
ZS
3420
02706
XA
3420
02716
XA
3420
02709
ZS
3420
02706
ZS
3420
02720
ZS
3420
02709
XA
MISMATCH
3420
02720
XA
TO
FLOOR
GLAND SEAL WATER
2958
3900-25J-023
L/G REGRIND CYCLONE U/F
L/G REGRIND FEED
DISTRIBUTOR, C2-3420-DI-502
2392 3400-25J-026
L/G REGRIND MILL
SCAV. CONC. COLLECTION
PUMPBOX, C2-3420-BX-504
2395 3400-25J-026
PLANT AIR
2396
3900-25J-021
L/G REGRIND CYCLONE U/F
H/G REGRIND FEED
DISTRIBUTOR, C2-3420-DI-501
3389 3400-25J-022
L/G REGRIND CYCLONE U/F
L/G REGRIND MILL NO.2,
C2-3420-ML-506
2820 3400-25J-031
L/G REGRIND CYCLONE U/F
L/G REGRIND MILL FEED
PUMPBOX, C2-3420-BX-510
2821
3400-25J-031
MISMATCH
L, P2
LL, P1
P2
REDUCER
LUBE SYSTEM
LUBE OIL
P2
VENDOR
PUMP
MIN
BRG
FRONT
H, P2
HH, P1
LUBE OIL
NOTE 1
TO FLOOR
MIN
L, P2
J/SP
TO FLOOR
J/SP
SLOPE
FAULT
COOLING FAN
TO FLOOR
NOTE 2
J/SP
TO FLOOR
OP/CL
OP/CL
OP/CL
OP/CL
OP/CL
FAULT
MISMATCH
MISMATCH
AFD
MISMATCH
MISMATCH
MISMATCH
MISMATCH
MISMATCH
3420
02717
XV
+
3420
02719
XV
+
C2-3420-PP-530
ES
3420
02704
FE
+
3420
02707
XV
+
3420
02720
XV
+ 3420
02709
XV
+
V
V
FI FI
FI
FI
FI
FL
FI
24"x14"
FI
1-1/2"
3420
02718
XV
+
3420-WG-1052-C1A-2"-N
1-1/2"
3420-WG-1682-C1A-3"-N
SIZE:13 m3
MATERIAL:
CAPACITY:
TRIM:3420-SL-1237-C1B-N
C2-3420-BX-513
LOW GRADE REGRIND MILL FEED PUMPBOX NO.1
3420-SL-1244-R1A-20"-N
3420
02712
XV
+
1/2"x1/4"
3420
02702
FE
+
3420-WR-1272-C1A-4"-N
3420-SL-1243-C1B-10"-N
24"x14"
FI
SIZE:
MATERIAL:
MOTOR:
C2-3420-PP-526
LOW GRADE REGRIND MILL NO.1 FEED PUMP
C2-3420-BX-513
3420-SL-1238-R1A-24"-N
10"x16"
C2-3420-PP-526
3420
02701
FV
+
SIZE:10 t
MATERIAL:
CAPACITY:
TRIM:
C2-3420-BN-511 TO 514
BALL BUCKET
SIZE: VTM 1500
MATERIAL:
MOTOR: 1120.00 kW
C2-3420-ML-505
LOW GRADE REGRIND MILL NO.1
FI
4"x1-1/2"
3420
02716
XV
+
C2-3420-ML-505
3420-AP-1256-C1A-1/2"-N
3420-SL-1235-R1B-20"-N
3420
02706
XV
+
FI
3420-SL-1242-R1A-16"-N
1-1/2"
C2-3420-BN-511 TO 514
3420
02701
FE
+
V
3420
02714
FE
+
3420
02708
XV
+
1-1/2"
SIZE:
MATERIAL:
MOTOR:
C2-3420-PP-530
LOW GRADE REGRIND MILL FEED PUMP
3420
02721
XV
+
C2-3420-LU-504 C2-3420-LU-505 C2-3420-LU-506 C2-3420-LU-507
SIZE:
C2-3420-LU-504
HIGH GRADE REGRIND MILL NO 1 LUBE SET RESERVOIR MODULE
SIZE:
C2-3420-LU-505
HIGH GRADE REGRIND MILL NO 2 LUBE SET RESERVOIR MODULE
SIZE:
C2-3420-LU-506
LOW GRADE REGRIND MILL NO 1 LUBE SET RESERVOIR MODULE
SIZE:
C2-3420-LU-507
LOW GRADE REGRIND MILL NO 2 LUBE SET RESERVOIR MODULE
AG
KM
LT
ISSUED FOR CLIENT REVIEW
22-Dec-11
B
RP
ISSUED FOR COMBINED REVIEW
29-Jun-11
A
12/22/2011
K. MUNDY
A. GUNSON
W. BIE
L. TAMELIN
12/21/2011
5:58:25
PM
WBS: 3420
B
PIPING AND INSTRUMENTATION DIAGRAM
REGRIND CIRCUIT
3400-25J-027
LOW GRADE REGRIND MILL NO. 1
ES
ES
ES
ES ES
ES
D
4
F
B
A
3
2
1 5 6 8
E
7
C
REV.
APPROVED
CHK.
DES.
REV. DATE REVISION DESCRIPTION
CLIENT
LEAD ENGINEER
SCALE DRAWING NUMBER
CHECK DESIGN CHECK DRAWING
DESIGNED BY DRAWN BY
APPROVAL DATE
APPROVAL DATE
APPROVED
CHK.
DES.
REV. DATE REVISION DESCRIPTION REFERENCE DRAWING No.
1:100
0
1:200
5m
10m
0
5m
10m
15m
20m
1:500
10m
0
20m
30m
40m
50m
1:1000
0
100m
50m
1:20
0
0.5m
1m
1.5m
2m
0
1:25
0.5m
1m
1.5m
1:33
1/3
2.5m
2m
0
1m
2m
3m
0
1:50
1m
2m
3m
4m
5m
CAD FILE NAME: P:0CAD000SPEM**
MODEL UPDATED:
DWG. FILE UPDATED:
MANUAL CHANGES MADE: YES NO YES NO YES NO
PROJECT MANAGER
ENGINEERING MANAGER
AREA PROJECT ENGINEER
REFERENCE DRAWINGS
SAFETY SHARE:
APPROVAL DATE
CONTRACT
NO.
SAFETY SHARE :
BA6CVA1.IGR
NOTICE: THIS DRAWING HAS NOT BEEN PUBLISHED AND IS THE SOLE
PROPERTY OF FLUOR AND IS LENT TO THE BORROWER FOR THEIR
CONFIDENTIAL USE ONLY, AND IN CONSIDERATION OF THE LOAN OF THIS
DRAWING, THE BORROWER PROMISES AND AGREES TO RETURN IT UPON
REQUEST AND AGREES THAT IT WILL NOT BE REPRODUCED, COPIED LENT
OR OTHERWISE DISPOSED OF DIRECTLY OR INDIRECTLY, NOR USED FOR
ANY OTHER PURPOSE OTHER THAN WHICH IT IS FURNISHED.
NONE
Apr 2011
240K-C2-
V1
3420-SL-1239-R1A-24"-N
3420-SL-1240-R1A-16"-N
3420-SL-1786-C1B-1-1/2"-N
3420-SL-1247-R1A-16"-N
3420-WG-1057-C1A-1"-N
3420-SL-1241-R1A-16"-N
FC
REGRIND AREA SPILLAGE
3794 3400-25J-032
3420-SL-1205-C1B-6"-N
PROCESS WATER
2397 3900-25J-016
PRODUCT
M
M
3420
02707 B
HS
OP/CL
L/R
3420
02717 B
HS
V3
V3
ES
ES
NOTES:
1. PUMPBOX OUTLETS HAVE REMOVABLE WEAR INSERTS
2. 10" SQUARE UNLOAD PORT
3. BALL ADDITION POINT
NOTE 3
3420-SL- -R1A-16"-N
D
4
F
B
A
3
2
1 5 6 8
E
7
C
REV.
APPROVED
CHK.
DES.
REV. DATE REVISION DESCRIPTION
CLIENT
LEAD ENGINEER
SCALE DRAWING NUMBER
CHECK DESIGN CHECK DRAWING
DESIGNED BY DRAWN BY
APPROVAL DATE
APPROVAL DATE
APPROVED
CHK.
DES.
REV. DATE REVISION DESCRIPTION REFERENCE DRAWING No.
1:100
0
1:200
5m
10m
0
5m
10m
15m
20m
1:500
10m
0
20m
30m
40m
50m
1:1000
0
100m
50m
1:20
0
0.5m
1m
1.5m
2m
0
1:25
0.5m
1m
1.5m
1:33
1/3
2.5m
2m
0
1m
2m
3m
0
1:50
1m
2m
3m
4m
5m
CAD FILE NAME: P:0CAD000SPEM**
MODEL UPDATED:
DWG. FILE UPDATED:
MANUAL CHANGES MADE: YES NO YES NO YES NO
PROJECT MANAGER
ENGINEERING MANAGER
AREA PROJECT ENGINEER
REFERENCE DRAWINGS
SAFETY SHARE:
APPROVAL DATE
CONTRACT
NO.
SAFETY SHARE :
BA6CVA1.IGR
NOTICE: THIS DRAWING HAS NOT BEEN PUBLISHED AND IS THE SOLE
PROPERTY OF FLUOR AND IS LENT TO THE BORROWER FOR THEIR
CONFIDENTIAL USE ONLY, AND IN CONSIDERATION OF THE LOAN OF THIS
DRAWING, THE BORROWER PROMISES AND AGREES TO RETURN IT UPON
REQUEST AND AGREES THAT IT WILL NOT BE REPRODUCED, COPIED LENT
OR OTHERWISE DISPOSED OF DIRECTLY OR INDIRECTLY, NOR USED FOR
ANY OTHER PURPOSE OTHER THAN WHICH IT IS FURNISHED.
NONE
Apr 2011
240K-C2-
M
TO FLOOR
3420
03102
FI
3420
03101
FIC
1-1/2"
4"x1-1/2"
3420
03103
YT
J/SP
3420
03110
LE
3420
03102
FE
+
AFD
3420
03102
FY
3420
03110
LT
3420
03114
FE
+
TO
FLOOR
3420
03103
YI
L, P2
LL, P1
3420
03110
LI
SLOPE
3420
03114
FIT
3420
03102
WQI
J/SP
3420
03110
LIC
FI
L, P2
J/SP
3420
03115
PI
C2-3420-BX-510
3420
03102
DIC
FAULT
3420
03114
FI
C2-3420-PP-527
FAULT
BRG
FRONT
H, P2
HH, P1
3420
03183 G
TE
3420
03113
PI
C2-3420-ML-506
CCTV
3420
03102
DX
J/SP
3420
03183 H
TE
C2-3420-BN-515 TO 517
3420
03102
DE
LUBE OIL
3420
03183 G
TI
3420
03102
DIT
3420
03112
XV
+
PUMP
3420
03102
FIT
3420
03183 H
TI
M
MASS
FLOW
REDUCER
LUBE SYSTEM
BRG
REAR
H, P2
HH, P1
3420
03101
FV
+
V
3420
03183
HS
3420
33001 B
FI
3420
33001 A
FI
3420
33101 A
PDAH
3420
03101
FE
+
TO FLOOR
V
3420
33101 B
PDAH
FI
SIZE:
MATERIAL:
MOTOR:
C2-3420-PP-531
REGRIND AREA SPILLAGE PUMP
C2-3420-PP-531
3420
03118
XV
+
P2
T8
MIN
1/2"x1/4"
LUBE OIL
P2
3420
03181
HS
3420
33081
HS
COOLING FAN
SHAFT BEARING
AUTO GREASE SYSTEM
3420
33082
HS
3420
03181
XA
3420
33082
II
3420
03183
II
L, P2
LL, P1
3420
33082
XA
VENDOR
NOTE 1
3420
03116
XV
+
3420
03181
II
3420
33081
II
3420
03183
XA
NOTE 2
TO FLOOR
L, P2
LL, P1
3420
33081
XA
FI
3420
03106
XV
+
1-1/2"
MIN
24"x14"
M
T3
1-1/2"
3420
03115
PIT
FI
10"x16"
3420
03101
FIT
L/G REGRIND CYCLONE U/F
L/G REGRIND FEED
DISTRIBUTOR, C2-3420-DI-502
2400 3400-25J-026
L/G REGRIND MILL
SCAV. CONC. COLLECTION
PUMPBOX, C2-3420-BX-504
2401 3400-25J-026
REG. AREA SUMP CONTETS
SCAV. CONC. COLLECTION
PUMPBOX, C2-3420-BX-504
2402 3400-25J-026
PLANT AIR
2403
3900-25J-021
3420
03104
LE
3420
03104
LIT
3420
03104
LI
3420
03182
HS
3420
03182
II
3420
03182
XA
J/SP
SIZE:10 t
MATERIAL:
CAPACITY:
TRIM:
C2-3420-BN-515 TO 517
BALL BUCKET
ES
3420-AP-1257-C1A-1/2"-N
3420-SL-1234-R1B-20"-N
SIZE: VTM 1500
MATERIAL:
MOTOR: 1120.00 kW
C2-3420-ML-506
LOW GRADE REGRIND MILL NO.2
3420-SL-1248-R1A-24"-N
3420-SL-1787-C1B-1-1/2"-N
3420-SL-1251-C1B-10"-N
ES
ES
ES
SIZE:
MATERIAL:
MOTOR:
C2-3420-PP-527
LOW GRADE REGRIND MILL NO.2 FEED PUMP (AFD)
3420-WR-1273-C1A-4"-N
ES
3420-WF-1683-C1A-3"-N
3420-WG-1051-C1A-2"-N
ES
SIZE:13 m3
MATERIAL:
CAPACITY:
TRIM: 3420-SL-1246-C1B-N
C2-3420-BX-510
LOW GRADE REGRIND MILL FEED PUMPBOX NO.2
3420-SL-1250-R1A-20"-N
AG
KM
LT
ISSUED FOR CLIENT REVIEW
22-Dec-11
B
RP
ISSUED FOR COMBINED REVIEW
29-Jun-11
A
12/22/2011
K. MUNDY
A. GUNSON
W. BIE
L. TAMELIN
12/21/2011
6:00:39
PM
WBS: 3420
B
PIPING AND INSTRUMENTATION DIAGRAM
REGRIND CIRCUIT
3400-25J-031
LOW GRADE REGRIND MILL NO. 2
H, P2
L, P2
LL, P1
L/G REGRIND CYCLONE U/F
L/G REGRIND MILL FEED
PUMP, C2-3420-PP-530
2820 3400-25J-027
3420-SL-1242-R1A-16"-N
L/G REGRIND CYCLONE U/F
L/G REGRIND MILL FEED
PUMP, C2-3420-PP-530
2821
3400-25J-027
3420
03107
XV
+
3420
03119
XV
+
3420
03117
XV
+
3420
03112
ZS
3420
03112
XA
3420
03107
XA
3420
03107
ZS
3420
03117
XA
3420
03118
XA
3420
03117
ZS
3420
03118
ZS
3420
03119
ZS
3420
03119
XA
OP/CL
OP/CL
OP/CL
OP/CL
OP/CL
FAULT
3420
03106
ZS
3420
03106
XA
3420
03116
XA
3420
03116
ZS
FAULT
FAULT
OP/CL
OP/CL
MISMATCH
MISMATCH
MISMATCH
MISMATCH
MISMATCH
MISMATCH
MISMATCH
GLAND SEAL WATER
3391
3900-25J-023
C2-3420-BN-047
SIZE:10 t
C2-3420-BN-047
BALL BIN
RSP
V
V
FI
FI
FL
3420-SL-1247-R1A-24"-N
3420-SL-1249-R1A-16"-N
3420-SL-1252-R1A-6"-N
FC
PROCESS WATER
2404 3900-25J-016
PRODUCT
M
3420
03107 B
HS
OP/CL
L/R
M
3420
03117 B
HS
OP/CL
L/R
ES
ES
NOTES:
1. PUMPBOX OUTLETS HAVE REMOVABLE WEAR INSERTS
2. 10" SQUARE UNLOAD PORT
3. BALL ADDITION POINT
NOTE 3
T3
T3
3420
03207
XA
3420
03201
WQI
3420
03205
PI
M
3420
03281
HS
J/SP
3420
03218
ZS
TO
FLOOR
3420
03281
II
3420
03201
DX
3420
03217
XA
3420
03215
PIT
3420
03217
ZS
OP/CL
3420
03214
FI
3420
03209
ZS
3420
03219
XA
3420
03209
XA
3420
03201
DIT
3420
03213
PI
3420
03218
XA
MISMATCH
3420
03219
ZS
3420
03201
DE
3420
03203
PI
M
3420
03215
PI
M
3420
03214
FIT
3420
03281
XA FAULT
3420
03208
XA
3420
03282
HS
J/SP
3420
03204
FI
3420
03201 B
FIT
3420
03204
FIT
3420
03201
FI
3420
03208
ZS
3420
03205
PIT
3420
03282
XA
3420
03207
ZS
OP/CL
3420
03282
II
FAULT
3420
03201
DIC
3420
03201
FY
3420
03210 A
LI
3420
03210
LIC
3420
03201 A
FIT
3420
03201
FIC
HH,P1
H, P2
L, P2
LL,P1
3420
03210
LT
3420
03212
ZS
OP/CL
3420
03210
LE
M
3420
03212
XA
COLUMN FEED
COLUMN FEED/TAILING
ANALYZER, C2-3430-AZ-506
3384 3400-25J-043
PROCESS WATER
3506 3900-25J-014
COLUMN FEED
COLUMN CELL FEED
DISTRIBUTOR, C2-3430-DI-504
3385 3400-25J-035
GLAND SEAL WATER
3504 3900-25J-023
COLUMN FEED
COLUMN FEED DISTRIBUTOR,
C2-3420-DI-503
3502 3400-25J-025
MIN
L, P2
LL, P1
L, P2
LL, P1
AFD
OP/CL
MISMATCH
OP/CL
C1A C1B
MISMATCH
L, P2
MISMATCH
AFD
TO
FLOOR
OP/CL
L, P2
MISMATCH
MISMATCH
MIN
12"
O/F
RSP
TO
FLOOR
TO
FLOOR
MISMATCH
FI
FI
C2-3420-BX-403
3420
03219
XV
+
3420
03201 B
FE
+
SIZE:
C2-3420-SA-544
COMBINED COLUMN FEED SAMPLER NO.2
AG
KM
LT
ISSUED FOR CLIENT REVIEW
22-Dec-11
B
NOT USED
A
12/22/2011
K. MUNDY
A. GUNSON
W. BIE
L. TAMELIN
12/20/2011
7:16:46
PM
WBS: 3420
B
PIPING AND INSTRUMENTATION DIAGRAM
REGRIND CIRCUIT
3400-25J-032
COLUMN CELL FEED PUMPS SH. 2 OF 2
V
3"x2"
3"x1-1/2"
V
2"x1-1/4"
SIZE:
MATERIAL:
MOTOR:
C2-3420-PP-522
COLUMN CELL FEED PUMP
2"x1"
1"x1-1/4"
SIZE:
MATERIAL:
MOTOR:
C2-3420-PP-523
COLUMN CELL FEED PUMP
24"x12"
3420
03208
XV
+
1-1/2" PL
ES
1-1/2" PL
1-1/2" PL
1-1/2" PL
1-1/2"
PL
24"x12"
FI
3420
03204
FE
+
3"
3420-SL-1224-R1A-24"-N
3"x2"
3420-SL-1223-C1B-2"-N
3"x1"
3420-SL-1824-R1A-24"-N
C2-3420-SA-544
3420-WG-1069-C1A-1-1/2"-N
C2-3420-PP-522
FI
3420
03217
XV
+
3420-SL-1822-R1A-30"-N
1/2" BA
C2-3420-PP-523
3420
03209
XV
+
FI
3420
03214
FE
+
3420
03207
XV
+
3420-SL-1823-R1A-24"-N
ES
ES
3420-WG-1070-C1A-1"-N
3420-SL-1821-R1A-30"-N
FI
3420
03218
XV
+
V
ES
3420
03212
XV
+
FI
3420
03201 A
FE
+
3420
03201
FV
+
3420-WR-2016-C1A-6"-N
SIZE:
MATERIAL:
CAPACITY:
TRIM:
C2-3420-BX-403
COLUMN CELL FEED PUMPBOX NO. 2
3420-WR-2017-C1A-6"-N
3420-SL-1214-R1A-30"-N
D
4
F
B
A
3
2
1 5 6 8
E
7
C
REV.
APPROVED
CHK.
DES.
REV. DATE REVISION DESCRIPTION
CLIENT
LEAD ENGINEER
SCALE DRAWING NUMBER
CHECK DESIGN CHECK DRAWING
DESIGNED BY DRAWN BY
APPROVAL DATE
APPROVAL DATE
APPROVED
CHK.
DES.
REV. DATE REVISION DESCRIPTION REFERENCE DRAWING No.
1:100
0
1:200
5m
10m
0
5m
10m
15m
20m
1:500
10m
0
20m
30m
40m
50m
1:1000
0
100m
50m
1:20
0
0.5m
1m
1.5m
2m
0
1:25
0.5m
1m
1.5m
1:33
1/3
2.5m
2m
0
1m
2m
3m
0
1:50
1m
2m
3m
4m
5m
CAD FILE NAME: P:0CAD000SPEM**
MODEL UPDATED:
DWG. FILE UPDATED:
MANUAL CHANGES MADE: YES NO YES NO YES NO
PROJECT MANAGER
ENGINEERING MANAGER
AREA PROJECT ENGINEER
REFERENCE DRAWINGS
SAFETY SHARE:
APPROVAL DATE
CONTRACT
NO.
SAFETY SHARE :
BA6CVA1.IGR
NOTICE: THIS DRAWING HAS NOT BEEN PUBLISHED AND IS THE SOLE
PROPERTY OF FLUOR AND IS LENT TO THE BORROWER FOR THEIR
CONFIDENTIAL USE ONLY, AND IN CONSIDERATION OF THE LOAN OF THIS
DRAWING, THE BORROWER PROMISES AND AGREES TO RETURN IT UPON
REQUEST AND AGREES THAT IT WILL NOT BE REPRODUCED, COPIED LENT
OR OTHERWISE DISPOSED OF DIRECTLY OR INDIRECTLY, NOR USED FOR
ANY OTHER PURPOSE OTHER THAN WHICH IT IS FURNISHED.
NONE
Apr 2011
240K-C2-
3420
03221
LE
3420
03221
LIT
3420
03221
LI
3420
03284
HS
3420
03284
II
3420
03284
XA
J/SP
H, P2
HH, P1
L,P2
FAULT
T8
3420
03283
HS
3420
03283
II
3420
03283
XA
J/SP
FAULT
T8
REGRIND AREA SUMP
REGRIND AREA
CONTAINMENT O/F
3794 3400-25J-027
COL. FLOT. AREA SUMP
COLUMN FLOTATION AREA
CONTAINMENT
3795 3400-25J-033
REGRIND O/F SUMP
ROUGHER CONCENTRATE
COLLECTION PUMPBOX,
3808 3400-25J-022
REGRIND O/F SUMP
ROUGHER CONCENTRATE
COLLECTION PUMPBOX,
3809 3400-25J-022
CONTENTS
CONTENTS
C2-3420-BX-502
C2-3420-BX-502
CONTENTS
3420-SL-1269-C1B-6"-N
3420-SL-1263-C1B-6"-N
3420-SL-1266-C1B-6"-N
3420-WR-1678-C1A-2"-N
3420-SL-1205-C1B-6"-N
3420-SL-1245-C1B-6"-N
3420-WR-1684-C1A-4"-N
C2-3420-PP-538
C2-3420-PP-537
C2-3420-PP-539
REGRIND EMERGENCY OVERFLOW SUMP
WATER
CANNONS
SIZE:
MATERIAL:
MOTOR:
C2-3420-PP-537
REGRIND EMERGENCY O/F SUMP PUMP NO.1
SIZE:
MATERIAL:
MOTOR:
C2-3420-PP-538
REGRIND EMERGENCY O/F SUMP PUMP NO.2
SIZE:
MATERIAL:
MOTOR:
C2-3420-PP-539
REGRIND EMERGENCY O/F SUBMERSIBLE SUMP PUMP
3420-WR-1685-C1A-3"-N
REGRIND O/F SUMP
TAILING LAUNDER,
C2-3710-LA-001
3812 3700-25J-001
CONTENTS
CONTENTS
ES
ES
M
M
V3
V3
ES
ES
3420
03217 B
HS
3420
03207 B
HS
M
M
ES
ES
V3
V3
3420
03209 B
HS
3420
03219 B
HS
OP/CL
L/R
OP/CL
L/R
OP/CL
L/R
OP/CL
L/R
D
4
F
B
A
3
2
1 5 6 8
E
7
C
REV.
APPROVED
CHK.
DES.
REV. DATE REVISION DESCRIPTION
CLIENT
LEAD ENGINEER
SCALE DRAWING NUMBER
CHECK DESIGN CHECK DRAWING
DESIGNED BY DRAWN BY
APPROVAL DATE
APPROVAL DATE
APPROVED
CHK.
DES.
REV. DATE REVISION DESCRIPTION REFERENCE DRAWING No.
1:100
0
1:200
5m
10m
0
5m
10m
15m
20m
1:500
10m
0
20m
30m
40m
50m
1:1000
0
100m
50m
1:20
0
0.5m
1m
1.5m
2m
0
1:25
0.5m
1m
1.5m
1:33
1/3
2.5m
2m
0
1m
2m
3m
0
1:50
1m
2m
3m
4m
5m
CAD FILE NAME: P:0CAD000SPEM**
MODEL UPDATED:
DWG. FILE UPDATED:
MANUAL CHANGES MADE: YES NO YES NO YES NO
PROJECT MANAGER
ENGINEERING MANAGER
AREA PROJECT ENGINEER
REFERENCE DRAWINGS
SAFETY SHARE:
APPROVAL DATE
CONTRACT
NO.
SAFETY SHARE :
BA6CVA1.IGR
NOTICE: THIS DRAWING HAS NOT BEEN PUBLISHED AND IS THE SOLE
PROPERTY OF FLUOR AND IS LENT TO THE BORROWER FOR THEIR
CONFIDENTIAL USE ONLY, AND IN CONSIDERATION OF THE LOAN OF THIS
DRAWING, THE BORROWER PROMISES AND AGREES TO RETURN IT UPON
REQUEST AND AGREES THAT IT WILL NOT BE REPRODUCED, COPIED LENT
OR OTHERWISE DISPOSED OF DIRECTLY OR INDIRECTLY, NOR USED FOR
ANY OTHER PURPOSE OTHER THAN WHICH IT IS FURNISHED.
NONE
Apr 2011
240K-C2-
NOTES:
1. VACUUM BREAK - OPEN END TO BE ROUTED 1 M HIGHER THAN TOP OF DISTRIBUTOR.
2. 3" RING HEADER C/W 7 - 1" DIA. SPRAY NOZZLES.
3. LOCATE ALL INSTRUMENTS AWAY FROM THE COLUMN CELLS.
4. 28 SPARGERS (1 PRESSURE INDICATOR PER 4 SPARGERS).
5. AIR LINE TO AIR HEADER TO BE BROUGHT DOWN FROM THE TOP OF TANK.
COLUMN FEED
COLUMN CELL FEED PUMPS,
C2-3420-PP-522/523
2194 3400-25J-025
COLUMN FEED
COLUMN TAILING
COLLECTION PUMPBOX,
2195 3400-25J-043
COLUMN FEED
COLUMN CELL NO. 2,
C2-3430-CM-502
2196 3400-25J-034
COLUMN FEED
COLUMN CELL NO. 3,
C2-3430-CM-503
2197 3400-25J-034
COLUMN CONCENTRATE
COLUMN CELL NO. 1
CONCENTRATE SAMPLER,
2198 3400-25J-037
COLUMN TAILING
COLUMN CELL NO. 1 TAILING
SAMPLER, C2-3430-SA-513
2199 3400-25J-042
C2-3430-SA-513
C2-3430-SA-505
C2-3430-BX-511
PLANT AIR
2202 3900-25J-021
AG
KM
LT
ISSUED FOR CLIENT REVIEW
22-Dec-11
B
RP
ISSUED FOR COMBINED REVIEW
29-Jun-11
A
12/22/2011
K. MUNDY
A. GUNSON
W. BIE
L. TAMELIN
12/21/2011
6:02:14
PM
WBS: 3430
B
PIPING AND INSTRUMENTATION DIAGRAM
COLUMN FLOTATION
3400-25J-033
DISTRIBUTOR NO. 1 AND CELL NO. 1
3430-SL-1260-C1B-4"-N
1-1/2"x3/4"
3430-AA-1008-C1A-4"-N
FI
FI
3430-AA-1009-C1A-4"-N
MISMATCH
3430
03304
LV
+
3430-WF-1422-C1A-2"-N
OP/CL
SIZE:
C2-3430-CM-501
COLUMN CELL NO. 1
H,P2
L,P2
SIZE:
MATERIAL:
CAPACITY:
TRIM:
C2-3430-DI-503
COLUMN CELLS FEED DISTRIBUTOR
1-1/2"x3/4"
ES
3430
03313
XA
ES
1-1/2"x3/4"
3430-WF-
-C1A-3"-N
OP/CL
FI
V
3430
03313
ZS
MISMATCH
3430-SL-1254-R1A-10"-N
MISMATCH
3430-WF-1530-C1A-1-1/2"-N
OP/CL
3430
03321
XA
1-1/2"x3/4"
3430-AP-1258-C1A-4"-N
H, P2
L, P2
NC
3430-WF-1530-C1A-1-1/2"-N
24''
MAN WAY
3430-WF-1411-C1A-8"-N
3430-SL-1258-R1A-20"-N
3430
03515
XA
3430
03310
XV
+
FI
3430-WF-1535-C1A-1-1/2"-N
3430
03314
XA
3430
03321
ZS
1-1/2"x3/4"
3430-SL-1255-R1A-8"-N
OP/CL
MISMATCH
NOTE 1
C2-3430-CM-501
NOTE
2
FI
3430
03303
FIT
3430
03320
XA
10"x4"
4''
3430
03302
FIC
3430-SL-1254-R1A-20"-N
NOTE 5
3430
03302
FIT
DRAIN
FC
3430
03515
ZS
3430
03314
ZS
3430
03307
PI
20"x10"
3430
03303
FI
MISMATCH MISMATCH
3430
03320
ZS
MISMATCH
MISMATCH
NOTE 4
MISMATCH
3430
03301
FV
+
4"x2"
3430
03319
XA
C2-3430-DI-503
OP/CL
3430
03301
FE
+
4"x2"
NOTE 1
3430
03319
ZS
3430
03321
XV
+
3430
03312
XA
3430
03305
PIT
3430
03311
XA
3430
03310
XA
OP/CL
20"x12"
NOTE 1
3430
03309
XA
OP/CL
OP/CL
3430
03309
XV
+
OP/CL
1"
3430
03313
XV
+
OP/CL
3430
03305
PI
3430
03318
ZS
4''
MISMATCH
M
FI
3430
03311
XV
+
3430
03306
PCV
+
M
1"
3430
03318
XA
3430
03302
FV
+
OP/CL
C1A
3430
03303
FE
+
1"
3430
03317
XA
3430
03302
FE
+
1"
C1A
3430
03304
LIT
3430
03317
ZS
4"x2"
H, P2
L, P2
FI
1"
FI
3430
03312
ZS
FI
C1A
3430
03311
ZS
FI
4"x2"
3430
03310
ZS
1"
3430
03304
LE
3430
03309
ZS
1"
4"x1"
R1A
3430
03304
LIC
3430
03316
ZS
3430
03316
XA
1"
2"x1"
4''
3430
03314
XV
+
3430
03301
FIT
3430-SL-1261-C1B-4"-N
4"x2"
3430-SL-1257-R1A-20"-N
3430
03319
XV
+
3430-SL-1262-C1B-14"-N
3430
03317
XV
+
3430-SL-1259-C1B-4"-N
3430
03312
XV
+
1-1/2"x3/4"
3430
03515
XV
+
V
3430
03320
XV
+
3430
03301
FIC
3430-SL-1224-R1A-24"-N
3430
03318
XV
+
3430-SL-1256-R1A-20"-N
3430
03316
XV
+
MISMATCH
MISMATCH
MISMATCH
OP/CL
V V V V
V V V V
V
V V V
V
V
V
V
V
V
V
ES
V
V
V
V
V
V
V
V
V
V
V
V
V
FRESH WATER
3496 5100-25J-014 C
V
V
V
ES
FRESH WATER
3497 5100-25J-014
FC
FI
FI
3430-AA-1010-C1A-4"-N
3430-RC-1152-C1D-1"-N
3430-WF-1531-C1A-3/4"-N
3430-WF-1532-C1A-3/4"-N
3430-WF-1533-C1A-3/4"-N
3430-WF-1534-C1A-3/4"-N
V
COL. FLOT. SUMP
REGRIND EMERGENCY O/F
SUMP
3795 3400-25J-032
3430-SL-1245-C1B-36"-N CONTENTS
DEFOAMER
INJECTOR, C2-3910-ZM-651
4115 3500-25J-033
D
4
F
B
A
3
2
1 5 6 8
E
7
C
REV.
APPROVED
CHK.
DES.
REV. DATE REVISION DESCRIPTION
CLIENT
LEAD ENGINEER
SCALE DRAWING NUMBER
CHECK DESIGN CHECK DRAWING
DESIGNED BY DRAWN BY
APPROVAL DATE
APPROVAL DATE
APPROVED
CHK.
DES.
REV. DATE REVISION DESCRIPTION REFERENCE DRAWING No.
1:100
0
1:200
5m
10m
0
5m
10m
15m
20m
1:500
10m
0
20m
30m
40m
50m
1:1000
0
100m
50m
1:20
0
0.5m
1m
1.5m
2m
0
1:25
0.5m
1m
1.5m
1:33
1/3
2.5m
2m
0
1m
2m
3m
0
1:50
1m
2m
3m
4m
5m
CAD FILE NAME: P:0CAD000SPEM**
MODEL UPDATED:
DWG. FILE UPDATED:
MANUAL CHANGES MADE: YES NO YES NO YES NO
PROJECT MANAGER
ENGINEERING MANAGER
AREA PROJECT ENGINEER
REFERENCE DRAWINGS
SAFETY SHARE:
APPROVAL DATE
CONTRACT
NO.
SAFETY SHARE :
BA6CVA1.IGR
NOTICE: THIS DRAWING HAS NOT BEEN PUBLISHED AND IS THE SOLE
PROPERTY OF FLUOR AND IS LENT TO THE BORROWER FOR THEIR
CONFIDENTIAL USE ONLY, AND IN CONSIDERATION OF THE LOAN OF THIS
DRAWING, THE BORROWER PROMISES AND AGREES TO RETURN IT UPON
REQUEST AND AGREES THAT IT WILL NOT BE REPRODUCED, COPIED LENT
OR OTHERWISE DISPOSED OF DIRECTLY OR INDIRECTLY, NOR USED FOR
ANY OTHER PURPOSE OTHER THAN WHICH IT IS FURNISHED.
NONE
Apr 2011
240K-C2-
COLUMN FEED
COLUMN CELL FEED
DISTRIBUTOR, C2-3430-DI-503
2196 3400-25J-033
COLUMN FEED
COLUMN CELL FEED
DISTRIBUTOR, C2-3430-DI-503
2197 3400-25J-033
PLANT AIR
2205 3900-25J-021
COLUMN CONCENTRATE
COLUMN CELL NO. 3
CONCENTRATE SAMPLER,
2206 3400-25J-037
COLUMN CONCENTRATE
COLUMN CELL NO. 2
CONCENTRATE SAMPLER,
2207 3400-25J-037
FRESH WATER
2208 3400-25J-035
COLUMN TAILING
COLUMN CELL NO. 2 TAILING
SAMPLER, C2-3430-SA-514
2209 3400-25J-042
COLUMN TAILING
COLUMN CELL NO. 3 TAILING
SAMPLER, C2-3430-SA-515
2210 3400-25J-042
AG
KM
LT
ISSUED FOR CLIENT REVIEW
22-Dec-11
B
RP
ISSUED FOR COMBINED REVIEW
29-Jun-11
A
12/22/2011
K. MUNDY
A. GUNSON
W. BIE
L. TAMELIN
12/22/2011
10:29:57
AM
WBS: 3430
B
PIPING AND INSTRUMENTATION DIAGRAM
COLUMN FLOTATION
3400-25J-034
CELLS NO. 2 AND NO. 3
MIN (TYP FOR ALL)
1-1/2"x3/4"
V
3430-WF-1536-C1A-1-1/2"-N
MIN (TYP FOR ALL)
3430
03433
ZS
V
FI
3430-WF-1542-C1A-1-1/2"-N
3430
03412
ZS
FI
3430
03429
XV
+
3430-WF-1415-C1A-2"-N
3430
03412
XA
3430
03429
XA
FI
3430
03437
XA
FI
V
V
3430
03429
ZS
3430
03421
FV
+
V
OP/CL
1-1/2"x3/4"
3430
03437
ZS
V
2"x1"
ES
3430
03431
ZS
1-1/2"x3/4"
V
V
3430
03430
ZS
3430-SL-1268-R1A-8"-N
MISMATCH
3430
03421
FE
+
2"x1"
1-1/2"x3/4"
3430
03410
XA
3430
03432
ZS
V
3430-WF-1413-C1A-3"-N
3430
03411
XA
3430
03432
XA
M
ES
3430
03417
XA
3430
03411
XV
+
3430-WF-1416-C1A-2"-N
3430
03409
XA
FI
3430-WF-1541-C1A-1-1/2"-N
MISMATCH
3430
03406
PCV
+
3430-SL-1264-R1A-10"-N
3430
03417
ZS
10"x8"
3430-AP-1259-C1A-2"-N
OP/CL
4"x2"
C2-3430-CM-503
V
3430-WF-
-C1A-3"-N
3430
03410
ZS
V
3430
03402
FE
+
1-1/2"x3/4"
ES
OP/CL
V
8"x4"
1-1/2"x3/4"
V
3430
03411
ZS
V
3430
03413
XV
+
V
3430
03409
ZS
V
3430
03437
XV
+
ES
3430
03430
XA
V
3430
03414
XV
+
3430
03410
XV
+
3430-WF-1547-C1A-1-1/2"-N
3430
03431
XA
3430
03435
XV
+
3430-WF-15448-C1A-1-1/2"-N
MISMATCH
3430
03433
XV
+
3430
03423
FE
+
8"x4"
V
3430
03405
PIT
FI
V
V
3430
03405
PI
3430
03436
XV
+
2"x1"
10"x8"
3430-SL-1267-R1A-10"-N
OP/CL
3430
03434
XV
+
M
V
3430-AP-1259-C1A-4"-N
3430
03432
XV
+
3430
03412
XV
+
V
20"x8"
3430-SL-1257-R1A-20"-N
3430
03403
FIT
OP/CL
V
FC
V
3430
03404
LIT
MISMATCH
3430
03409
XV
+
V
V
M
3430
03403
FI
20"x8"
3430
03426
PCV
+
V
3430
03404
LE
V
3430-WF-1536-C1A-1-1/2"-N
3"
3430
03416
XA
SIZE:
C2-3430-CM-502
COLUMN CELL NO. 2
V
H, P2
L, P2
V
4"x2"
3430
03422
FE
+
ES
3430
03404
LIC
3430
03430
XV
+
3430-SL- -R1A-8"-N
3430
03423
FIT
2"x1"
1"
V
V
3430
03425
PIT
1"
FI
4"x2"
V
3430
03423
FI
FI
V
3430
03425
PI
MIN
FC
3430
03402
FIC
3430
03416
ZS
4"x2"
OP/CL
3430
03422
FV
+
3430
03402
FV
+
MISMATCH
MISMATCH
3430
03402
FIT
V
1"
3430
03424
LIT
SIZE:
C2-3430-CM-503
COLUMN CELL NO. 3
3430
03401
FV
+
3430
03407
PI
3430
03415
XA
3430
03436
XA
4"x2"
V
3430
03401
FIT
OP/CL
FI
V
3430
03424
LE
FI
V
V
1-1/2"x3/4"
H,P2
L,P2
V
4"x2"
3430
03417
XV
+
3430
03401
FIC
3430
03403
FE
+
3430
03424
LIC
V
3430
03422
FIC
3430
03415
ZS
1"
3430
03404
LV
+
3430
03422
FIT
3430
03436
ZS
20"x12"
3430
03427
PI
MISMATCH
1"
3430
03421
FIT
OP/CL
1"
H,P2
L,P2
1"
3430
03421
FIC
3430
03435
XA
FI
NOTE
2
3430
03431
XV
+
OP/CL
V
2"x1"
NOTE 4
C2-3430-SA-507
20"x12"
NOTE 4
C2-3430-SA-506
4"x2"
1"
NOTE
2
3430
03414
ZS
FI
1"
3"
MISMATCH
1"
1"
H, P2
L, P2
3430
03435
ZS
V
1"
2"x1"
3430
03414
XA
MISMATCH
V
FI
MISMATCH
MISMATCH
OP/CL
OP/CL
MISMATCH
3430
03424
LV
+
1-1/2"x3/4"
NOTES:
1. AIR LINE TO AIR HEADER TO BE BROUGHT DOWN FROM THE TOP OF TANKS.
2. 3" RING HEADER C/W 7 - 1" DIA. SPRAY NOZZLES.
3. LOCATE ALL INSTRUMENTS AWAY FROM THE COLUMN CELLS.
4. 28 SPARGERS (1 PRESSURE INDICATOR PER 4 SPARGERS)
MISMATCH
1"
1-1/2"x3/4"
ES
OP/CL
1-1/2"x3/4"
1"
V
V
3430
03413
XA
OP/CL
3430
03401
FE
+
C2-3430-CM-502
OP/CL
V
MISMATCH
3430
03434
ZS
3430
03415
XV
+
V
OP/CL
MISMATCH
V
24''
MAN WAY
1-1/2"x3/4"
M
V
3430
03413
ZS
DRAIN
NC
V
V
FI
MIN
3430
03434
XA
V
3430-SL-1265-R1A-8"-N
FI
NOTE 1
MISMATCH
2"x1"
V
FI
MIN (TYP FOR ALL)
OP/CL
1"
V
FI
24''
MAN WAY
V
V
MISMATCH
DRAIN
3430-SL-1256-R1A-20"-N
OP/CL
NOTE 1
3430
03433
XA
1-1/2"x3/4"
3430-WF-1414-C1A-3"-N
H, P2
L, P2
3430
03416
XV
+
2"x1"
H, P2
L, P2
V
MIN (TYP FOR ALL)
1"
3430-AP-
-C1A-2"-N
MISMATCH
V
V
V
V
V
V
V
V
V
ES
V
V
V
V
V
V
V
V
V
V
V
V
V
V
V
V
V
V
V
V
V
V
V
V
V
V
V
V
V
V
V
ES
FRESH WATER
3498 5100-25J-014
FRESH WATER
3499 5100-25J-014
FC
3430-SL-1267-R1A-20"-N
3430-SL-1264-R1A-20"-N
3430-WG-1543-C1A-3/4"-N
3430-WG-1544-C1A-3/4"-N
3430-WG-1545-C1A-3/4"-N
3430-WG-1546-C1A-3/4"-N
3430-RC-1157-C1D-1"-N
3430-RC-1156-C1D-1"-N
FI
FC
3430-WF-1537-C1A-3/4"-N
3430-WF-1538-C1A-3/4"-N
3430-WF-1539-C1A-3/4"-N
3430-WF-1540-C1A-3/4"-N
DEFOAMER
INJECTOR, C2-3910-ZM-503
4116 3500-25J-033
DEFOAMER
INJECTOR, C2-3910-ZM-502
4114 3500-25J-033
D
4
F
B
A
3
2
1 5 6 8
E
7
C
REV.
APPROVED
CHK.
DES.
REV. DATE REVISION DESCRIPTION
CLIENT
LEAD ENGINEER
SCALE DRAWING NUMBER
CHECK DESIGN CHECK DRAWING
DESIGNED BY DRAWN BY
APPROVAL DATE
APPROVAL DATE
APPROVED
CHK.
DES.
REV. DATE REVISION DESCRIPTION REFERENCE DRAWING No.
1:100
0
1:200
5m
10m
0
5m
10m
15m
20m
1:500
10m
0
20m
30m
40m
50m
1:1000
0
100m
50m
1:20
0
0.5m
1m
1.5m
2m
0
1:25
0.5m
1m
1.5m
1:33
1/3
2.5m
2m
0
1m
2m
3m
0
1:50
1m
2m
3m
4m
5m
CAD FILE NAME: P:0CAD000SPEM**
MODEL UPDATED:
DWG. FILE UPDATED:
MANUAL CHANGES MADE: YES NO YES NO YES NO
PROJECT MANAGER
ENGINEERING MANAGER
AREA PROJECTENGINEER
REFERENCE DRAWINGS
SAFETY SHARE:
APPROVAL DATE
CONTRACT
NO.
SAFETY SHARE :
BA6CVA1.IGR
NOTICE: THIS DRAWING HAS NOT BEEN PUBLISHED AND IS THE SOLE
PROPERTY OF FLUOR AND IS LENT TO THE BORROWER FOR THEIR
CONFIDENTIAL USE ONLY, AND IN CONSIDERATION OF THE LOAN OF THIS
DRAWING, THE BORROWER PROMISES AND AGREES TO RETURN IT UPON
REQUEST AND AGREES THAT IT WILL NOT BE REPRODUCED, COPIED LENT
OR OTHERWISE DISPOSED OF DIRECTLY OR INDIRECTLY, NOR USED FOR
ANY OTHER PURPOSE OTHER THAN WHICH IT IS FURNISHED.
NONE
Apr 2011
240K-C2-
3430
03501
FE
+
C2-3430-DI-504
3430
03501
FV
+
3430
03507
PI
M
3430
03502
FIT
3430
03502
FIC
FI
NOTE
2
3430
03510
XV
+
NOTES:
1. VACUUM BREAK - OPEN END TO BE ROUTED 1 M HIGHER THAN TOP OF DISTRIBUTOR.
2. 3" RING HEADER C/W 7 - 1" DIA. SPRAY NOZZLES.
3. LOCATE ALL INSTRUMENTS AWAY FROM THE COLUMN CELLS.
4. 28 SPARGERS (1 PRESSURE INDICATOR PER 4 SPARGERS).
5. AIR LINE TO AIR HEADER TO BE BROUGHT DOWN FROM THE TOP OF TANK.
H, P2
L, P2
SIZE:
C2-3430-CM-504
COLUMN CELL NO. 4
FI
3430
03512
XV
+
1"
1"
1"
1" 1"
1"
1"
3430
03511
XV
+
1"
3430
03509
XV
+
20"x12"
4"x2" 4"x2"
20"x10"
10"x4"
1-1/2"x3/4"
1-1/2"x3/4"
1-1/2"x3/4" 1-1/2"x3/4" 1-1/2"x3/4" 1-1/2"x3/4"
4"x2"
2"x1"
4"x1"
4"x2"
4"x2"
3430
03502
FE
+
3430
03502
FV
+
3430
03506
PCV
+
4''
NOTE 1
24''
MAN WAY
4''
R1A
C1A
C1A
C1A
FI
4''
M
NOTE 1 NOTE 1
3430
03503
FI
FC
3430
03503
FIT
C2-3430-CM-504
FI FI
FI
H,P2
L,P2
3430
03504
LV
+
FI
3430
03501
FIC
3430
03515
XV
+
3430
03501
FIT
3430
03514
XV
+
3430
03504
LIC
3430
03504
LE
H, P2
L, P2
3430
03504
LIT
3430
03503
FE
+
3430
03505
PI
3430
03513
XV
+
3430
03505
PIT
3430
03521
XV
+
C2-3430-SA-508
NOTE 4
NOTE 5
3430-SL-1270-R1A-20"-N
PLANT AIR
2407 3900-25J-021
FRESH WATER
2408 5100-25J-014
COLUMN FEED
COLUMN CELL FEED PUMP,
C2-3420-PP-523
2409 3400-25J-025
COLUMN FEED
COLUMN TAILING
COLLECTION PUMPBOX,
2410 3400-25J-043
COLUMN FEED
COLUMN CELL NO. 5,
C2-3430-CM-505
2411 3400-25J-036
COLUMN FEED
COLUMN CELL NO. 6,
C2-3430-CM-506
2412 3400-25J-036
COLUMN CONCENTRATE
COLUMN CELL NO. 4
CONCENTRATE SAMPLER,
2413 3400-25J-037
C2-3430-BX-511
COLUMN TAILING
COLUMN CELL NO. 4 TAILING
SAMPLER, C2-3430-SA-516
2442 3400-25J-043
3430-SL-1271-R1A-8"-N
3430-WF-1553-C1A-1-1/2"-N
3430-SL-1274-R1A-20"-N
3430-WF-1417-C1A-8"-N
3430-WF-1536-C1A-1-1/2"-N
3430-AP-1261-C1A-4"-N
3430-SL-1270-R1A-10"-N
V
ES
ES
SIZE:
MATERIAL:
CAPACITY:
TRIM:
C2-3430-DI-504
COLUMN CELLS FEED DISTRIBUTOR
3430-WF-1418-C1A-2"-N
3430-AA-1012-C1A-4"-N
3430-AA-1011-C1A-4"-N
3430-SL-1276-C1B-4"-N
3430-SL-1272-R1A-20"-N
3430-SL-1222-R1A-24"-N
V
3430-SL-1275-C1B-4"-N
3430-SL-1278-C1B-14"-N
3430-SL-1273-R1A-20"-N
AG
KM
LT
ISSUED FOR CLIENT REVIEW
22-Dec-11
B
RP
ISSUED FOR COMBINED REVIEW
29-Jun-11
A
12/22/2011
K. MUNDY
A. GUNSON
W. BIE
L. TAMELIN
12/22/2011
10:21:36
AM
WBS: 3430
B
PIPING AND INSTRUMENTATION DIAGRAM
COLUMN FLOTATION
3400-25J-035
DISTRIBUTOR NO. 2 AND CELL NO. 4
3430-SL-1277-C1B-4"-N
3430
03509
ZS
3430
03510
ZS
3430
03511
ZS
3430
03512
ZS
OP/CL OP/CL OP/CL OP/CL
3430
03509
XA
3430
03510
XA
3430
03511
XA
3430
03512
XA
MISMATCH MISMATCH MISMATCH
MISMATCH
3430
03514
ZS
3430
03515
ZS
3430
03514
XA
3430
03515
XA
OP/CL
MISMATCH
3430
03513
ZS
3430
03513
XA
OP/CL
MISMATCH
3430
03516
XV
+
3430
03518
XV
+
3430
03520
XV
+
FI
3430
03517
XV
+
3430
03519
XV
+
3430
03516
XA
3430
03516
ZS
FI
FI
FI FI
3430
03517
ZS
3430
03517
XA
OP/CL
3430
03518
XA
MISMATCH
3430
03518
ZS
OP/CL
3430
03519
ZS
OP/CL
3430
03519
XA
MISMATCH 3430
03520
ZS
3430
03520
XA
MISMATCH
OP/CL
3430
03521
ZS
3430
03521
XA
MISMATCH
OP/CL
DRAIN
MISMATCH
MISMATCH
MISMATCH
OP/CL
V V V V
V V V V
V
V
V
V
V
V
V
ES
V
V
V
V
V
V V V
V
V
V
V
V
V
V
V
V
V
V
ES
FRESH WATER
2208 3400-25J-034
3430-WF-1536-C1A-1-1/2"-N FRESH WATER
2415 3400-25J-036
3430-AA-1013-C1A-4"-N
FI
FI
FC
V
3430-RC-1153-C1D-1"-N
3430-WF-1549-C1A-3/4"-N
3430-WF-1550-C1A-3/4"-N
3430-WF-1551-C1A-3/4"-N
3430-WF-1552-C1A-3/4"-N
DEFOAMER
INJECTOR, C2-3910-ZM-654
4120 3500-25J-033
H, P2
L, P2
3"
NOTE
2
NOTE 4
NOTE 4
NOTE
2
3430
03621
FIC
H,P2
L,P2
3430
03621
FIT
3430
03627
PI
3430
03622
FIT
3430
03622
FIC
M
3430
03624
LIC
3430
03601
FIC
H,P2
L,P2
3430
03624
LE
3430
03601
FIT
3430
03607
PI
3430
03624
LIT
3430
03602
FIT
3430
03602
FIC
3430
03625
PI
3430
03623
FI
3430
03625
PIT
M
3430
03623
FIT
M
3430
03604
LIC H, P2
L, P2
3"
3430
03604
LE
3430
03603
FI
3430
03604
LIT
3430
03603
FIT
M
OP/CL
3430
03605
PI
3430
03605
PIT
MISMATCH
3430
03631
XA
3430
03630
XA
3430
03609
ZS
3430
03611
ZS
OP/CL
3430
03610
ZS
OP/CL
3430
03617
ZS
MISMATCH
3430
03609
XA
3430
03617
XA
3430
03611
XA
3430
03610
XA
MISMATCH
3430
03630
ZS
3430
03631
ZS
3430
03637
ZS
OP/CL
3430
03629
ZS
3430
03637
XA
3430
03629
XA
COLUMN TAILING
COLUMN CELL NO. 5 TAILING
SAMPLER, C2-3430-SA-517
2443 3400-25J-043
COLUMN TAILING
COLUMN CELL NO. 6 TAILING
SAMPLER, C2-3430-SA-518
2444 3400-25J-043
FRESH WATER
2415 3400-25J-035
FRESH WATER
2416 5100-25J-014
PLANT AIR
2417 3900-25J-021
COLUMN FEED
COLUMN CELL FEED
DISTRIBUTOR, C2-3430-DI-504
2411 3400-25J-035
COLUMN FEED
COLUMN CELL FEED
DISTRIBUTOR, C2-3430-DI-504
2412 3400-25J-035
MIN (TYP FOR ALL)
MIN (TYP FOR ALL)
MIN (TYP FOR ALL)
H, P2
L, P2
NOTES:
1. AIR LINE TO AIR HEADER TO BE BROUGHT DOWN FROM THE TOP OF TANKS.
2. 3" RING HEADER C/W 7 - 1" DIA. SPRAY NOZZLES.
3. LOCATE ALL INSTRUMENTS AWAY FROM THE COLUMN CELLS.
4. 28 SPARGERS (1 PRESSURE INDICATOR PER 4 SPARGERS)
H, P2
L, P2
NOTE 1
C2-3430-SA-509
C2-3430-SA-510
DRAIN
24''
MAN WAY
MIN (TYP FOR ALL)
NOTE 1
MIN
DRAIN
24''
MAN WAY
OP/CL
MISMATCH
OP/CL
OP/CL
OP/CL
MISMATCH
MISMATCH
MISMATCH
MISMATCH
1"
FI
4"x2"
3430
03631
XV
+
1"
1"
V
V
FI
4"x2"
FL
1"
2"x1"
3430
03630
XV
+
V
V
3430
03612
XV
+
2"x1"
V
3430
03623
FE
+
3430
03614
XV
+
3430
03637
XV
+
3430
03602
FE
+
4"x2"
V
3430
03621
FE
+
1-1/2"x3/4"
3430
03621
FV
+
V
1-1/2"x3/4"
1"
3430
03616
XV
+
1-1/2"x3/4"
V
1-1/2"x3/4"
3430
03601
FE
+
1-1/2"x3/4"
1"
3430
03624
LV
+
2"x1"
1"
1"
20"x12"
V
FI
20"x12"
4"x2"
V
FI
4"x2"
SIZE:
C2-3430-CM-506
COLUMN CELL NO. 6
V
3430
03622
FV
+
FC
FI
1"
4"x2"
V
20"x8"
3430
03609
XV
+
FC
V
8"x4"
3430
03610
XV
+
8"x4"
C2-3430-CM-506
10"x8"
3430
03606
PCV
+
FI
3430
03611
XV
+
2"x1"
V
V
1-1/2"x3/4"
3430
03629
XV
+
V
1"
2"x1"
FI
1"
V
V
1"
1"
1"
3430
03604
LV
+
3430
03603
FE
+
3430
03617
XV
+
V
V
3430
03601
FV
+
4"x2"
V
3430
03622
FE
+
SIZE:
C2-3430-CM-505
COLUMN CELL NO. 5
3430
03626
PCV
+
V
20"x8"
V
10"x8"
3430
03613
XV
+
1-1/2"x3/4"
1-1/2"x3/4"
V
1-1/2"x3/4"
2"x1"
V
V
2"x1"
V
V
3430
03615
XV
+
C2-3430-CM-505
V
1-1/2"x3/4" 1-1/2"x3/4"
FI
2"x1"
1"
1-1/2"x3/4"
V
1"
3430
03602
FV
+
AG
KM
LT
ISSUED FOR CLIENT REVIEW
22-Dec-11
B
RP
ISSUED FOR COMBINED REVIEW
29-Jun-11
A
12/22/2011
K. MUNDY
A. GUNSON
W. BIE
L. TAMELIN
12/22/2011
10:23:35
AM
WBS: 3430
B
PIPING AND INSTRUMENTATION DIAGRAM
COLUMN FLOTATION
3400-25J-036
CELLS NO. 5 AND NO. 6
V
V
V
3430-SL- -R1A-8"-N
ES
V
V
V
V
3430-SL-1272-R1A-20"-N
3430-SL-1283-R1A-20"-N
3430-AP-1277-C1A-4"-N
3430-SL-1283-R1A-10"-N
V
V
3430-WF-1565-C1A-1-1/2"-N
ES
V
V
ES
3430-AP-1277-C1A-2"-N
3430-SL-1280-R1A-10"-N
3430-WF-1559-C1A-1-1/2"-N
3430-WF-1422-C1A-2"-N
ES
3430-WF-1419-C1A-8"-N
3430-SL-1284-R1A-12"-N
V
ES
V
V
3430-WF- -C1A-2"-N
3430-WF-1560-C1A-1-1/2"-N
3430-WF-1536-C1A-1-1/2"-N
3430-AP-1278-C1A-2"-N
V
3430-SL- -R1A-8"-N
3430-WF-1420-C1A-3"-N
3430-SL-1273-R1A-20"-N
V
V
3430-SL-1281-R1A-8"-N
3430-SL-1280-R1A-20"-N
V
V
V
V
V
V
ES
D
4
F
B
A
3
2
1 5 6 8
E
7
C
REV.
APPROVED
CHK.
DES.
REV. DATE REVISION DESCRIPTION
CLIENT
LEAD ENGINEER
SCALE DRAWING NUMBER
CHECK DESIGN CHECK DRAWING
DESIGNED BY DRAWN BY
APPROVAL DATE
APPROVAL DATE
APPROVED
CHK.
DES.
REV. DATE REVISION DESCRIPTION REFERENCE DRAWING No.
1:100
0
1:200
5m
10m
0
5m
10m
15m
20m
1:500
10m
0
20m
30m
40m
50m
1:1000
0
100m
50m
1:20
0
0.5m
1m
1.5m
2m
0
1:25
0.5m
1m
1.5m
1:33
1/3
2.5m
2m
0
1m
2m
3m
0
1:50
1m
2m
3m
4m
5m
CAD FILE NAME: P:0CAD000SPEM**
MODEL UPDATED:
DWG. FILE UPDATED:
MANUAL CHANGES MADE: YES NO YES NO YES NO
PROJECT MANAGER
ENGINEERING MANAGER
AREA PROJECTENGINEER
REFERENCE DRAWINGS
SAFETY SHARE:
APPROVAL DATE
CONTRACT
NO.
SAFETY SHARE :
BA6CVA1.IGR
NOTICE: THIS DRAWING HAS NOT BEEN PUBLISHED AND IS THE SOLE
PROPERTY OF FLUOR AND IS LENT TO THE BORROWER FOR THEIR
CONFIDENTIAL USE ONLY, AND IN CONSIDERATION OF THE LOAN OF THIS
DRAWING, THE BORROWER PROMISES AND AGREES TO RETURN IT UPON
REQUEST AND AGREES THAT IT WILL NOT BE REPRODUCED, COPIED LENT
OR OTHERWISE DISPOSED OF DIRECTLY OR INDIRECTLY, NOR USED FOR
ANY OTHER PURPOSE OTHER THAN WHICH IT IS FURNISHED.
NONE
Apr 2011
240K-C2-
3430
03612
XA
3430
03612
ZS
OP/CL
MISMATCH
FI
FI
FI
FI
3430
03613
ZS
3430
03613
XA OP/CL
MISMATCH
3430
03614
XA
MISMATCH
3430
03614
ZS
OP/CL
3430
03615
ZS
OP/CL
3430
03612
XA
MISMATCH 3430
03616
ZS
3430
03616
XA
MISMATCH
OP/CL
3430
03632
XV
+
3430
03634
XV
+
3430
03636
XV
+
FI
3430
03633
XV
+
3430
03635
XV
+
V
V
V
V
V
3430
03632
XA
3430
03632
ZS
FI
FI
FI FI
3430
03633
ZS
3430
03633
XA OP/CL
MISMATCH
3430
03634
XA
MISMATCH
3430
03634
ZS
OP/CL
3430
03635
ZS
OP/CL
3430
03635
XA
MISMATCH 3430
03636
ZS
3430
03636
XA
MISMATCH
OP/CL
MIN
MISMATCH
ES
V
V
V
V
V
V
V
V
V
V
V
V
V
V
V
V
V
V V
V
V
V
V
V
V
V
V
V
V
V
V
ES
V
V
V
V
V
V V V
FI
FC
3430-WF-1561-C1A-3/4"-N
3430-WF-1562-C1A-3/4"-N
3430-WF-1563-C1A-3/4"-N
3430-WF-1564-C1A-3/4"-N
FI
FC
3430-RC-1159-C1D-1"-N
3430-WF-1555-C1A-3/4"-N
3430-WF-1556-C1A-3/4"-N
3430-WF-1557-C1A-3/4"-N
3430-WF-1558-C1A-3/4"-N
3430-RC-1158-C1D-1"-N
COLUMN CONCENTRATE
COLUMN CELL NO. 5
CONCENTRATE SAMPLER,
2220 3400-25J-041
COLUMN CONCENTRATE
COLUMN CELL NO. 6
CONCENTRATE SAMPLER,
2219 3400-25J-041
DEFOAMER
INJECTOR, C2-3910-ZM-655
4121 3500-25J-033
DEFOAMER
INJECTOR, C2-3910-ZM-656
4119 3500-25J-033
NOTE 1
VENDOR FLUOR
NOTE 1
NOTE 1
NOTES:
1. PROVISION FOR AUTOMATED SHIFT SAMPLER.
V
C2-3430-AZ-505
2"x1/2"
C2-3430-SA-505
C2-3430-SA-506
C2-3430-SA-507
2"x1"
2"x1"
2"x1"
V
V
V
V
V
V
D
4
F
B
A
3
2
1 5 6 8
E
7
C
REV.
APPROVED
CHK.
DES.
REV. DATE REVISION DESCRIPTION
CLIENT
LEAD ENGINEER
SCALE DRAWING NUMBER
CHECK DESIGN CHECK DRAWING
DESIGNED BY DRAWN BY
APPROVAL DATE
APPROVAL DATE
APPROVED
CHK.
DES.
REV. DATE REVISION DESCRIPTION REFERENCE DRAWING No.
1:100
0
1:200
5m
10m
0
5m
10m
15m
20m
1:500
10m
0
20m
30m
40m
50m
1:1000
0
100m
50m
1:20
0
0.5m
1m
1.5m
2m
0
1:25
0.5m
1m
1.5m
1:33
1/3
2.5m
2m
0
1m
2m
3m
0
1:50
1m
2m
3m
4m
5m
CAD FILE NAME: P:0CAD000SPEM**
MODEL UPDATED:
DWG. FILE UPDATED:
MANUAL CHANGES MADE: YES NO YES NO YES NO
PROJECT MANAGER
ENGINEERING MANAGER
AREA PROJECT ENGINEER
REFERENCE DRAWINGS
SAFETY SHARE:
APPROVAL DATE
CONTRACT
NO.
SAFETY SHARE :
BA6CVA1.IGR
NOTICE: THIS DRAWING HAS NOT BEEN PUBLISHED AND IS THE SOLE
PROPERTY OF FLUOR AND IS LENT TO THE BORROWER FOR THEIR
CONFIDENTIAL USE ONLY, AND IN CONSIDERATION OF THE LOAN OF THIS
DRAWING, THE BORROWER PROMISES AND AGREES TO RETURN IT UPON
REQUEST AND AGREES THAT IT WILL NOT BE REPRODUCED, COPIED LENT
OR OTHERWISE DISPOSED OF DIRECTLY OR INDIRECTLY, NOR USED FOR
ANY OTHER PURPOSE OTHER THAN WHICH IT IS FURNISHED.
NONE
Apr 2011
240K-C2-
C2-3430-LA-522
COLUMN CONCENTRATE
COLUMN CELL NO. 3,
C2-3430-CM-503
2206 3400-25J-034
COLUMN CONCENTRATE
COLUMN CELL NO. 2,
C2-3430-CM-502
2207 3400-25J-034
COLUMN CONCENTRATE
COLUMN CELL NO. 1,
C2-3430-CM-501
2198 3400-25J-033
C2-3430-CM-501
PROCESS WATER
2212 3900-25J-014
COLUMN CONCENTRATE
COLUMN CELL NO. 5 CONC.
SAMPLER, C2-3430-SA-509
1075 3400-25J-041
COLUMN CONCENTRATE
COLUMN CELL NO. 4 CONC.
SAMPLER, C2-3430-SA-508
1074 3400-25J-041
COLUMN CONCENTRATE
COLUMN CELL NO. 6 CONC.
SAMPLER, C2-3430-SA-510
1076 3400-25J-041
COLUMN CONCENTRATE
COLUMN CONC. IN-STREAM
ANALYZER NO. 2,
1077 3400-25J-041
COLUMN CONCENTRATE
COLUMN CONC. COLLECTION
PUMPBOX, C2-3430-BX-512
1079 3400-25J-041
SIZE:
MATERIAL:
CAPACITY:
TRIM:
C2-3430-SA-507
COLUMN CELL CONCENTRATE SAMPLER NO. 3
3430-SL-1286-R1A-8"-N
3430-SL-1285-R1A-4"-N
3430-SL-1268-R1A-8"-N
3430-SL-1293-R1A-6"-N
SIZE:
MATERIAL:
MOTOR:
C2-3430-AZ-505
COLUMN CELLS CONCENTRATE IN-STREAM ANALYZER
3430-SL-1265-R1A-8"-N
3430-WR-1721-C1A-2"-N
3430-SL-1292-R1A-6"-N
ES
SIZE:
MATERIAL:
CAPACITY:
TRIM:
C2-3430-SA-506
COLUMN CELL CONCENTRATE SAMPLER NO. 2
3430-SL-1295-R1A-6"-N
3430-SL-1291-R1A-6"-N
3430-WR-1723-C1A-1"-N
3430-SL-1301-R1A-6"-N
SIZE:
C2-3430-LA-522
COLUMN CONCENTRATE COLLECTION LAUNDER
3430-SL-1299-R1A-6"-N
3430-WF-1171-C1A-2"-N
3430-SL-1289-R1A-4"-N
3430-SL-1297-R1A-6"-N
3430-SL-1287-R1A-4"-N
3430-SL-1290-R1A-8"-N
SIZE:
MATERIAL:
CAPACITY:
TRIM:
C2-3430-SA-505
COLUMN CELL CONCENTRATE SAMPLER NO. 1
3430-WR-1722-C1A-1"-N
3430-SL-1255-R1A-8"-N
3430-SL-1288-R1A-8"-N
AG
KM
LT
ISSUED FOR CLIENT REVIEW
22-Dec-11
B
RP
ISSUED FOR COMBINED REVIEW
29-Jun-11
A
12/22/2011
K. MUNDY
A. GUNSON
W. BIE
L. TAMELIN
12/20/2011
7:27:34
PM
WBS: 3430
B
PIPING AND INSTRUMENTATION DIAGRAM
COLUMN FLOTATION
3400-25J-037
CELL 1 TO 3 CONCENTRATE SAMPLING
FRESH WATER
2817 5100-25J-014
C2-3430-AZ-507
3430-WR-1720-C1A-3"-N
3"x2"
C2-3430-AZ-507
C2-3430-AZ-507
3430-SL-1302-R1A-6"-N
3430-SL-1300-R1A-6"-N
COLUMN CONCENTRATE
COLUMN CONC. IN-STREAM
ANALYZER NO. 2,
3397 3400-25J-041
COLUMN CONCENTRATE
COLUMN CONC. IN-STREAM
ANALYZER NO. 2,
3396 3400-25J-041
3430-WR-1720-C1A-3"-N
T3
AFD
NOTE 2
T3
AFD
3430
04107
XA
3430
04117
XA
3430
04112
XA
3430
04109
ZS
3430
04119
ZS
OP/CL
MISMATCH
3430
04111
ZS
MISMATCH
3430
04118
ZS
3430
04109
XA
3430
04111
XA
3430
04118
XA
3430
04119
XA
3430
04182
HS
J/SP
3430
04110
LIC
3430
04105
PI
L, P2
M
3430
04103
DIT
3430
04113
PI
3430
04181
XA
3430
04103
FY
3430
04104
FI
3430
04103
DE
3430
04110
LT
3430
04105
PIT
OP/CL
3430
04103
WQI
MASS
FLOW
M
3430
04117
ZS
3430
04112
ZS
OP/CL
3430
04107
ZS
M
3430
04115
PI
L,P2
3430
04181
HS
J/SP
3430
04114
FIT
3430
04181
II
3430
04101
HIC
3430
04103
DI
3430
04103
FIT
MISMATCH
3430
04103
DX
3430
04115
PIT
3430
04103
FI
3430
04114
FI
3430
04182
II
3430
04182
XA
3430
04104
FIT
3430
04110
LE
FRESH WATER
2818 5100-25J-014
RECLEANER CONCENTRATE
RECLEANER CONC. SAMPLER,
C2-3420-SA-537
2742 3400-25J-053
GLAND SEAL WATER
2961 3900-25J-023
RECLEANER CONCENTRATE
CL SCAV/1ST CL INSTREAM
ANALYZER, C2-3430-AZ-509
2726 3400-25J-053
COLUMN CONCENTRATE
COLUMN CONC. COLLECTION
LAUNDER, C2-3430-LA-522
3397 3400-25J-037
COLUMN CONCENTRATE
COLUMN CELL NO.5,
C2-3430-CM-505
2219 3400-25J-036
COLUMN CONCENTRATE
COLUMN CONC. COLLECTION
LAUNDER, C2-3430-LA-522
1077 3400-25J-037
COLUMN CONCENTRATE
CU-MO CONCENTRATE
THICKENER FEED BOX,
1860 3500-25J-001
C2-3610-BX-001
COLUMN CONCENTRATE
COLUMN CONC. COLLECTION
LAUNDER, C2-3430-LA-522
1076
3400-25J-037
COLUMN CONCENTRATE
COLUMN CELL NO.4,
C2-3430-CM-504
2218 3400-25J-035
COLUMN CONCENTRATE
COLUMN CONC. COLLECTION
LAUNDER, C2-3430-LA-522
1075
3400-25J-037
COLUMN CONCENTRATE
COLUMN CONC. COLLECTION
LAUNDER, C2-3430-LA-522
1079 3400-25J-037
COLUMN CONCENTRATE
COLUMN CONC. COLLECTION
LAUNDER, C2-3430-LA-522
3396 3400-25J-037
COLUMN CONCENTRATE
CU CONCENTRATE
THICKENER FEED BOX,
2213 3600-25J-001
COLUMN CONCENTRATE
COLUMN CELL NO.6,
C2-3430-CM-506
2220 3400-25J-036
COLUMN CONCENTRATE
COLUMN CONC. COLLECTION
LAUNDER, C2-3430-LA-522
1074
3400-25J-037
OP/CL
OP/CL
MISMATCH
MISMATCH
MISMATCH
OP/CL
OP/CL
MISMATCH
TO
FLOOR
LL, P1
L, P2
MIN
L, P2
LL, P1
FLUOR
NOTE 1
12"
O/F
VENDOR
TO
FLOOR
NOTES:
1. MANUAL WATER ADDITION ON LOW LOW LEVEL.
2. PROVISION FOR AUTOMATED SHIFT SAMPLER.
FAULT
FAULT
C2-3510-BX-003
NOTE 2
NOTE 2
L, P2
LL, P1
MIN
MIN
MIN
MIN
3430
04114
FE
+
3430-SL- -C1B-8"-N
3430
04117
XV
+
C2-3430-BX-512
V
2"x1-1/4"
V
2"x1"
3430-SL-1300-R1A-6"-N
3430
04118
XV
+
V1
V
3430
04104
FE
+
3"x2"
3430
04103
FE
+
V3
V1
V
1"x1-1/4"
V3
V
8"x6"
C2-3430-PP-515
V1
3430-WG-1019-C1A-1-1/2"-N
V1
2"x1"
3430
04119
XV
+
1-1/2"x1"
3430
04112
XV
+
V1
3"x1"
V
2"x1"
C2-3430-SA-508
C2-3430-AZ-507
2"x1/2"
C2-3430-SA-510
C2-3430-SA-509
C2-3430-PP-514
3"x1"
3430
04109
XV
+
8"x6"
3"x2"
V
3430
04107
XV
+
3430
04111
XV
+
3430-SL-1301-R1A-6"-N
3430-SL-1302-R1A-6"-N
AG
KM
LT
ISSUED FOR CLIENT REVIEW
22-Dec-11
B
RP
ISSUED FOR COMBINED REVIEW
29-Jun-11
A
12/22/2011
K. MUNDY
A. GUNSON
W. BIE
L. TAMELIN
12/20/2011
7:29:51
PM
WBS: 3430
B
PIPING AND INSTRUMENTATION DIAGRAM
COLUMN FLOTATION
3400-25J-041
CELL 4 TO 6 CONCENTRATE SAMPLING
SIZE:
MATERIAL:
MOTOR:
C2-3430-PP-514
COLUMN CONCENTRATE TRANSFER PUMP
SIZE:
C2-3430-SA-510
COLUMN CELL CONCENTRATE SAMPLER NO.6
3430-SL-1281-R1A-8"-N
3430-SL-1297-R1A-8"-N
3430-SL-1294-R1A-4"-N
3430-WR-1263-C1A-8"-N
3430-WR-1726-C1A-6"-N
ES
SIZE:
C2-3430-SA-508
COLUMN CELL CONCENTRATE SAMPLER NO.4
3430-SL-1307-R1A-24"-N
ES
SIZE:
MATERIAL:
MOTOR:
C2-3430-PP-515
COLUMN CONCENTRATE TRANSFER PUMP
3430-WR-1727-C1A-1"-N
3430-WR-1725-C1A-2"-N
3430-WR-1728-C1A-1"-N
3430-SL-1299-R1A-8"-N
SIZE:50 m3
MATERIAL:
CAPACITY:
TRIM:
C2-3430-BX-512
COLUMN CONC. COLLECTION PUMPBOX
ES
3430-SL-1295-R1A-8"-N
3430-WG-1061-C1A-1"-N
3430-SL-1309-R1A-12"-N
ES
ES
ES
3430-SL-1271-R1A-8"-N
3430-SL-1310-R1A-12"-N
SIZE:
C2-3430-AZ-507
COLUM CELLS CONCENTRATE IN-STREAM ANALYZER
3430-SL-1298-R1A-4"-N
3430-SL-1296-R1A-4"-N
3430-SL-1306-R1A-24"-N
3430-WF-1178-C1A-2"-N
3430-SL-1284-R1A-8"-N
3430-SL-1308-R1A-12"-N
SIZE:
C2-3430-SA-509
COLUMN CELL CONCENTRATE SAMPLER NO.5
D
4
F
B
A
3
2
1 5 6 8
E
7
C
REV.
APPROVED
CHK.
DES.
REV. DATE REVISION DESCRIPTION
CLIENT
LEAD ENGINEER
SCALE DRAWING NUMBER
CHECK DESIGN CHECK DRAWING
DESIGNED BY DRAWN BY
APPROVAL DATE
APPROVAL DATE
APPROVED
CHK.
DES.
REV. DATE REVISION DESCRIPTION REFERENCE DRAWING No.
1:100
0
1:200
5m
10m
0
5m
10m
15m
20m
1:500
10m
0
20m
30m
40m
50m
1:1000
0
100m
50m
1:20
0
0.5m
1m
1.5m
2m
0
1:25
0.5m
1m
1.5m
1:33
1/3
2.5m
2m
0
1m
2m
3m
0
1:50
1m
2m
3m
4m
5m
CAD FILE NAME: P:0CAD000SPEM**
MODEL UPDATED:
DWG. FILE UPDATED:
MANUAL CHANGES MADE: YES NO YES NO YES NO
PROJECT MANAGER
ENGINEERING MANAGER
AREA PROJECT ENGINEER
REFERENCE DRAWINGS
SAFETY SHARE:
APPROVAL DATE
CONTRACT
NO.
SAFETY SHARE :
BA6CVA1.IGR
NOTICE: THIS DRAWING HAS NOT BEEN PUBLISHED AND IS THE SOLE
PROPERTY OF FLUOR AND IS LENT TO THE BORROWER FOR THEIR
CONFIDENTIAL USE ONLY, AND IN CONSIDERATION OF THE LOAN OF THIS
DRAWING, THE BORROWER PROMISES AND AGREES TO RETURN IT UPON
REQUEST AND AGREES THAT IT WILL NOT BE REPRODUCED, COPIED LENT
OR OTHERWISE DISPOSED OF DIRECTLY OR INDIRECTLY, NOR USED FOR
ANY OTHER PURPOSE OTHER THAN WHICH IT IS FURNISHED.
NONE
Apr 2011
240K-C2-
3430-SL-1387-R1A-6"-N
3430-SL-1378-R1A-12"-N
FC
3430
04101
HV
+
FI
FI
FI
FI
FI
FI
FL
PROCESS WATER
2214 3900-25J-016
3430
B
HS
M
M
3430
B
HS
D
4
F
B
A
3
2
1 5 6 8
E
7
C
REV.
APPROVED
CHK.
DES.
REV. DATE REVISION DESCRIPTION
CLIENT
LEAD ENGINEER
SCALE DRAWING NUMBER
CHECK DESIGN CHECK DRAWING
DESIGNED BY DRAWN BY
APPROVAL DATE
APPROVAL DATE
APPROVED
CHK.
DES.
REV. DATE REVISION DESCRIPTION REFERENCE DRAWING No.
1:100
0
1:200
5m
10m
0
5m
10m
15m
20m
1:500
10m
0
20m
30m
40m
50m
1:1000
0
100m
50m
1:20
0
0.5m
1m
1.5m
2m
0
1:25
0.5m
1m
1.5m
1:33
1/3
2.5m
2m
0
1m
2m
3m
0
1:50
1m
2m
3m
4m
5m
CAD FILE NAME: P:0CAD000SPEM**
MODEL UPDATED:
DWG. FILE UPDATED:
MANUAL CHANGES MADE: YES NO YES NO YES NO
PROJECT MANAGER
ENGINEERING MANAGER
AREA PROJECT ENGINEER
REFERENCE DRAWINGS
SAFETY SHARE:
APPROVAL DATE
CONTRACT
NO.
SAFETY SHARE :
BA6CVA1.IGR
NOTICE: THIS DRAWING HAS NOT BEEN PUBLISHED AND IS THE SOLE
PROPERTY OF FLUOR AND IS LENT TO THE BORROWER FOR THEIR
CONFIDENTIAL USE ONLY, AND IN CONSIDERATION OF THE LOAN OF THIS
DRAWING, THE BORROWER PROMISES AND AGREES TO RETURN IT UPON
REQUEST AND AGREES THAT IT WILL NOT BE REPRODUCED, COPIED LENT
OR OTHERWISE DISPOSED OF DIRECTLY OR INDIRECTLY, NOR USED FOR
ANY OTHER PURPOSE OTHER THAN WHICH IT IS FURNISHED.
NONE
Apr 2011
240K-C2-
NOTE 1
VENDOR FLUOR
NOTE 1
NOTE 1
NOTES:
1. PROVISION FOR AUTOMATED SHIFT SAMPLER.
V
C2-3430-AZ-506
2"x1/2"
C2-3430-SA-513
C2-3430-SA-514
C2-3430-SA-515
2"x1"
2"x1"
3"x1"
V
V
V
V
V
V
COLUMN TAILING
COLUMN TAILING
COLLECTION PUMPBOX,
2425 3400-25J-043
C2-3430-LA-521 C2-3430-BX-511
FRESH WATER
2433 5100-25J-014
COLUMN TAILING
COLUMN CELL #1 TAILING
C2-3430-CM-501
2199 3400-25J-033
COLUMN TAILING
COLUMN CELL NO.2 TAILING
C2-3430-CM-502
2209 3400-25J-034
COLUMN TAILING
COLUMN CELL NO.3 TAILING
C2-3430-CM-503
2210 3400-25J-034
PROCESS WATER
2434 3900-25J-014
COLUMN TAILING
COLUMN CELL NO.4 TAILING
SAMPLER, C2-3430-SA-516
2435 3400-25J-043
COLUMN TAILING
COLUMN CELL NO.5 TAILING
SAMPLER, C2-3430-SA-517
2436 3400-25J-043
COLUMN TAILING
COLUMN CELL NO.6 TAILING
SAMPLER, C2-3430-SA-518
2437 3400-25J-043
COLUMN TAILING
COLUMN TAILING IN-STREAM
ANALYZER NO. 7,
2438 3400-25J-043
3430-SL-1326-R1A-20"-N
3430-SL-1318-R1A-6"-N
3430-SL-1319-R1A-6"-N
3430-SL-1322-R1A-20"-N
3430-SL-1267-R1A-20"-N
SIZE:
MATERIAL:
CAPACITY:
TRIM:
C2-3430-SA-513
COLUMN CELL TAILING SAMPLER NO.1
3430-SL-1315-R1A-4"-N
SIZE:
MATERIAL:
MOTOR:
C2-3430-AZ-506
COLUMN CELLS FEED/TAILING IN-STREAM ANALYZER
3430-SL-1314-R1A-20"-N
SIZE:
C2-3430-LA-521
COLUMN TAILING COLLECTION LAUNDER
3430-SL-1316-R1A-20"-N
3430-SL-1312-R1A-20"-N
3430-SL-1254-R1A-20"-N
3430-SL-1311-R1A-4"-N
3430-WR-1730-C1A-1"-N
SIZE:
MATERIAL:
CAPACITY:
TRIM:
C2-3430-SA-515
COLUMN CELL TAILING SAMPLER NO.3
3430-WF-1177-C1A-2"-N
3430-SL-1331-R1A-12"-N
3430-WR-1731-C1A-1"-N
3430-SL-1313-R1A-4"-N
3430-SL-1324-R1A-20"-N
3430-SL-1264-R1A-20"-N
SIZE:
MATERIAL:
CAPACITY:
TRIM:
C2-3430-SA-514
COLUMN CELL TAILING SAMPLER NO.2
3430-WR-1729-C1A-3"-N
3430-SL-1317-R1A-6"-N
ES
AG
KM
LT
ISSUED FOR CLIENT REVIEW
22-Dec-11
B
RP
ISSUED FOR COMBINED REVIEW
29-Jun-11
A
12/22/2011
K. MUNDY
A. GUNSON
W. BIE
L. TAMELIN
12/20/2011
7:31:15
PM
WBS: 3430
B
PIPING AND INSTRUMENTATION DIAGRAM
COLUMN FLOTATION
3400-25J-042
CELL 1 TO 3 TAILING SAMPLING
NOTE 1
COLUMN FEED
COMBINED COLUMN FEED
SAMPLER NO.1,
2481 3400-25J-025
3430
04201 A
AE
3430
04201 A
AIT
3430
04201 A
AIC
ES
PH
PH CONTROL
3430-AV-04201C,
1395 3400-25J-006
PH CONTROL
3430-AV-04201B,
1381 3400-25J-001
PH CONTROL
3430-AV-04201A,
1378 3400-25J-001
PH CONTROL
3430-AV-04201F,
2652 3400-25J-044
PH CONTROL
3430-AV-04201G,
2654 3400-25J-044
3430-SL-1320-R1A-3"-N
3430-SL-1223-C1B-2"-N
PH CONTROL
3398
3400-25J-043
C2-3430-AZ-508
3430
04201
HY
3430
04201
AIC
SEL
AVE
PH CONTROL
3430-AV-04201D,
1403 3400-25J-014
PH CONTROL
3430-AV-04201E,
1404 3400-25J-014
C2-3410-LA-504
C2-3410-LA-403
C2-3410-LA-203
C2-3410-LA-103
C2-3410-LA-511
C2-3410-LA-514
C2-3410-LA-503
3430-WR-1719-C1A-3"-N
3"x2"
C2-3420-SA-543
NOTE 2
T3
AFD
T3
AFD
3430
04383
XA
3430
04383
II
3430
04383
HS
J/SP
3430
04302
LI
3430
04302
LIT
3430
04302
LE
3430
04201 B
AE
3430
04201 B
AIT
3430
04201 B
AIC
3430
04305
PIT
3430
04304
FIT
3430
04303
DIC
3430
04314
FIT
3430
04303
FY
3430
04315
PIT
3430
04303
FI
3430
04303
DIT
3430
04382
II
3430
04320
FIC
HH,P1
H, P2
L, P2
LL,P1
3430
04303
DE
3430
04382
XA
FAULT
3430
04310
LT
3430
04303
FIT
M
3430
04382
HS
J/SP
3430
04310
LE
3430
04313
PI
3430
04310
LIC
3430
04381
II
MISMATCH
3430
04305
PI
L, P2
3430
04304
FI
3430
04381
XA
MISMATCH
3430
04381
HS
J/SP
M
M
3430
04315
PI
L,P2
3430
04314
FI
3430
04303
WQI
MASS
FLOW
3430
04312
ZS
OP/CL
3430
04317
ZS
3430
04307
ZS
3430
04317
XA
3430
04307
XA
3430
04312
XA
3430
04309
ZS
3430
04319
ZS
OP/CL
3430
04318
ZS
OP/CL
3430
04308
ZS
MISMATCH
3430
04309
XA
OP/CL
3430
04308
XA
3430
04319
XA
3430
04318
XA
3430
04324
XA
3430
04324
ZS
OP/CL
3430
04320
FIT
M
3430
04323
DIT
3430
04323
FI
3430
04323
FY
3430
04323
WQI
MASS
FLOW
3430
04323
DE
3430
04323
DX
3430
04323
DIC
3430
04323
FIT
3430
04325
ZS
3430
04325
XA
M
3430
04326
ZS
3430
04326
XA
3430
04323
HY
3430
04303
DX
PH CONTROL,
C2-3430-AZ-506
3398 3400-25J-042
GLAND SEAL WATER
2960 3900-25J-023
1ST CLEANER FEED
1ST CLEANER FEED
DISTRIBUTOR, C2-3410-DI-505
2440 3400-25J-044
FRESH WATER
2441 5100-25J-014
COLUMN TAILING
COLUMN CELL NO.4,
C2-3430-CM-504
2442 3400-25J-035
COLUMN TAILING
COLUMN CELL NO.5,
C2-3430-CM-505
2443 3400-25J-036
COLUMN TAILING
COLUMN CELL NO.6 TAILING,
C2-3430-CM-506
2444 3400-25J-036
PROCESS WATER
2448 3900-25J-016
COLUMN FEED
LOW GRADE REGRIND
CYCLONE O/F SAMPLER,
2479 3400-25J-025
COLUMN FEED
COMBINED COLUMN FEED
SAMPL. NO.2, C2-3420-SA-544
2480
3400-25J-032
COLUMN TAILING
COLUMN TAILING
COLLECTION LAUNDER,
2425 3400-25J-042
COLUMN TAILING
COLUMN TAILING
COLLECTION LAUNDER,
2435
3400-25J-042
COLUMN TAILING
COLUMN TAILING
COLLECTION LAUNDER,
2436
3400-25J-042
COLUMN TAILING
COLUMN TAILING
COLLECTION LAUNDER,
2437
3400-25J-042 COLUMN TAILING
COLUMN TAILING
COLLECTION LAUNDER,
2438 3400-25J-042
COLUMN FEED
COLUMN CELLS FEED
DISTRIBUTOR NO.2,
2410 3400-25J-035
1ST CLEANER FEED
1ST CLEANER FEED
DISTRIBUTOR, C2-3410-DI-505
3495 3400-25J-044
COLUMN FEED
COLUMN CELLS FEED
DISTRIBUTOR NO.1,
2195 3400-25J-033
C2-3430-LA-521
C2-3430-LA-521
C2-3430-LA-521
C2- 3430-LA-521
FAULT
MISMATCH
MISMATCH
NOTE 2
H, P2
L, P2
LL, P1
PH
C2-3420-SA-542
RSP
C2-3430-DI-504
C2-3430-LA-521
NOTE 1
NOTE 2 NOTE 2
FLUOR
MIN
TO
FLOOR
MIN
L, P2
LL, P1
12"
O/F
MIN
TO
FLOOR OP/CL
MIN
L, P2
LL, P1
FAULT
MIN
VENDOR
NOTES:
1. MANUAL WATER ADDITION ON LOW LOW LEVEL.
2. PROVISION FOR AUTOMATED SHIFT SAMPLER.
OP/CL
MISMATCH
MISMATCH
MISMATCH
LL,P1
L, P2
MISMATCH
OP/CL
MISMATCH
OP/CL
SELECT
C2-3430-DI-503
3430
043020
FE
+
FI
ES
3430
04324
XV
+
3430
04326
XV
+
3430
04323
FE
+
FI
3430
04325
XV
+
FI
ES
ES
3430
04312
XV
+
8"x6"
8"x6"
FI
3430
04307
XV
+
C2-3430-BX-511
3"x1"
FI
C2-3430-SA-518
3430
04303
FE
+
C2-3430-SA-516
2"x1/2"
C2-3430-PP-512
3430
04318
XV
+
3430
04309
XV
+
FI
3430
04308
XV
+
FI
V1
V
1-1/2"x1"
3"x1"
C2-3430-AZ-508
3430
04304
FE
+
2"x1"
C2-3430-SA-517
3430
04319
XV
+
V
3430
04314
FE
+
3"x2"
2"x1-1/4"
2"x1"
2"x1"
V
V
V
3430
04317
XV
+
FI
C2-3430-PP-513
FI
3"x2"
1"x1-1/4"
FI
V
V
C2-3430-PP-516
SIZE:
MATERIAL:
MOTOR:
C2-3430-PP-516
COLUMN AREA SPILLAGE PUMP
ES
AG
KM
LT
ISSUED FOR CLIENT REVIEW
22-Dec-11
B
RP
ISSUED FOR COMBINED REVIEW
29-Jun-11
A
12/22/2011
K. MUNDY
A. GUNSON
W. BIE
L. TAMELIN
12/21/2011
6:04:39
PM
WBS: 3430
B
PIPING AND INSTRUMENTATION DIAGRAM
COLUMN FLOTATION
3400-25J-043
CELL 4 TO 6 TAILING SAMPLING
3430-SL-1330-R1A-3"-N
3430-SL-1221-C1B-2"-N
3430-SL-1225-R1A-42"-N
3430-WG-1050-C1A-1-1/2"-N
SIZE:
MATERIAL:
MOTOR:
C2-3430-PP-512
COLUMN TAILING TRANSFER PUMP
3430-SL-1327-R1A-6"-N
3430-WR-1732-C1A-2"-N
3430-WR-1734-C1A-1"-N
ES
ES
3430-SL-1336-R1A-42"-N
3430-SL-1322-R1A-20"-N
3430-SL-1326-R1A-20"-N
3430-WG-1056-C1A-1"-N
3430-SL-1324-R1A-20"-N
3430-SL-1334-R1A-48"-N
3430-WF-1179-C1A-2"-N
3430-SL-1323-R1A-4"-N
3430-SL-1280-R1A-20"-N
3430-WR-1733-C1A-6"-N
ES
SIZE:
MATERIAL:
CAPACITY:
TRIM:
C2-3430-BX-511
COLUMN TAILING COLLECTION PUMPBOX
3430-SL-1337-R1A-42"-N
ES
SIZE:
C2-3430-SA-518
COLUMN CELL TAILING SAMPLER NO.6
SIZE:
C2-3430-AZ-508
COLUMN CELLS TAILING IN-STREAM ANALYZER
SIZE:
C2-3430-SA-516
COLUMN CELL TAILING SAMPLER NO.4
SIZE:
C2-3430-SA-517
COLUMN CELL TAILING SAMPLER NO.5
3430-SL-1321-R1A-4"-N
3430-SL-1329-R1A-6"-N
3430-SL-1328-R1A-6"-N
ES
3430-SL-1270-R1A-20"-N
ES
3430-SL-1335-R1A-48"-N
3430-WR-1265-C1A-8"-N
3430-SL-1283-R1A-20"-N
3430-SL-1325-R1A-4"-N
3430-WR-1735-C1A-1"-N
SIZE:
MATERIAL:
MOTOR:
C2-3430-PP-513
COLUMN TAILING TRANSFER PUMP
3430-SL-1332-R1A-42"-N
3430-SL-1331-R1A-12"-N
FC
3430-SL-1278-C1B-14"-N
3430-SL-1262-C1B-14"-N
D
4
F
B
A
3
2
1 5 6 8
E
7
C
REV.
APPROVED
CHK.
DES.
REV. DATE REVISION DESCRIPTION
CLIENT
LEAD ENGINEER
SCALE DRAWING NUMBER
CHECK DESIGN CHECK DRAWING
DESIGNED BY DRAWN BY
APPROVAL DATE
APPROVAL DATE
APPROVED
CHK.
DES.
REV. DATE REVISION DESCRIPTION REFERENCE DRAWING No.
1:100
0
1:200
5m
10m
0
5m
10m
15m
20m
1:500
10m
0
20m
30m
40m
50m
1:1000
0
100m
50m
1:20
0
0.5m
1m
1.5m
2m
0
1:25
0.5m
1m
1.5m
1:33
1/3
2.5m
2m
0
1m
2m
3m
0
1:50
1m
2m
3m
4m
5m
CAD FILE NAME: P:0CAD000SPEM**
MODEL UPDATED:
DWG. FILE UPDATED:
MANUAL CHANGES MADE: YES NO YES NO YES NO
PROJECT MANAGER
ENGINEERING MANAGER
AREA PROJECTENGINEER
REFERENCE DRAWINGS
SAFETY SHARE:
APPROVAL DATE
CONTRACT
NO.
SAFETY SHARE :
BA6CVA1.IGR
NOTICE: THIS DRAWING HAS NOT BEEN PUBLISHED AND IS THE SOLE
PROPERTY OF FLUOR AND IS LENT TO THE BORROWER FOR THEIR
CONFIDENTIAL USE ONLY, AND IN CONSIDERATION OF THE LOAN OF THIS
DRAWING, THE BORROWER PROMISES AND AGREES TO RETURN IT UPON
REQUEST AND AGREES THAT IT WILL NOT BE REPRODUCED, COPIED LENT
OR OTHERWISE DISPOSED OF DIRECTLY OR INDIRECTLY, NOR USED FOR
ANY OTHER PURPOSE OTHER THAN WHICH IT IS FURNISHED.
NONE
Apr 2011
240K-C2-
M
3430
B
HS
V3
M
M
M
M
M
M
V3
V3
V3
V3
V3
V3
3430
B
HS
3430
B
HS
3430
B
HS
3430
B
HS
3430
B
HS
3430
B
HS
T8
T1
T1 3410
04422
LE
3410
04401
LIC
3410
04401
LIT
3410
04481
II
3410
04401
LE
3410
04481
XA FAULT
3410
04402
LIT
3410
04421
LE
3410
04402
LI
3410
04422
LIT
3410
04422
LI
3410
04421
LIC
3410
04491
XA FAULT
3410
04421
LIT
3410
04423
AT
3410
04491
HS
3410
04423
AI
3410
04402
LE
3410
04403
AI
3410
04403
AT
3410
04481
HS
3410
04491
II
VENDOR
PROCESS WATER
2824 3900-25J-014
PROCESS WATER
2646 3900-25J-014
PROCESS WATER
2647 3900-25J-014
MILK OF LIME
LIME DISTRIBUTION PUMPS,
C2-3920-PP-093/094
2648 3900-25J-012
MILK OF LIME
LIME DISTRIBUTION PUMPS,
C2-3920-PP-093/094
2650 3900-25J-012
PH CONTROL
C2-3430-AZ-506/508
2652 3400-25J-042
PH CONTROL
C2-3430-AZ-506/508
2654 3400-25J-042
PROCESS WATER
2659 3400-25J-045
1ST CLEANER TAILING
1ST CLEANER CELL NO.2,
ROW NO.1, C2,3410-SF-522
2660 3400-25J-045
1ST CLEANER TAILING
1ST CLEANER CELL NO.2,
ROW NO.1, C2,3410-SF-522
2661 3400-25J-045
1ST CLEANER CONC.
1ST CLEANER CONCENTRATE
LAUNDER, C2-3410-LA-511
2662 3400-25J-045
1ST CLEANER CONC.
1ST CLEANER CONCENTRATE
BYPASS LAUNDER,
2663 3400-25J-045
PROCESS WATER
2664 3400-25J-045
C2-3410-LA-513
1ST CLEANER TAILING
1ST CLEANER CELL NO.2,
ROW NO.2, C2+3410-SF-532
2665 3400-25J-045
1ST CLEANER TAILING
1ST CLEANER CELL NO.2,
ROW NO.2, C2+3410-SF-532
2666 3400-25J-045
1ST CLEANER CONC.
1ST CLEANER CONCENTRATE
LAUNDER, C2-3410-LA-514
2668 3400-25J-045
1ST CLEANER CONC.
1ST CLEANER CONCENTRATE
BYPASS LAUNDER,
2669 3400-25J-045
1ST CLEANER FEED
COLUMN TAILING
COLLECTION PUMPBOX,
2440 3400-25J-043
(LAUNDER)
(LAUNDER)
J/SP
AIR
INTAKE
VENDOR
VENDOR
VENDOR
AIR
INTAKE
VENDOR
J/SP
VENDOR
C2-3430-BX-511
C2-3410-LA-516
VENDOR
VENDOR
3400-WR-1736-C1A-1-1/2"-N
3410-WR-1738-C1A-1-1/2"-N
3410-WR-1760-C1A-1-1/2"-N
3410-WR-1761-C1A-2"-N
3410-WR-1783-C1A-8"-N
3410
04401 B
LV
+
3410-SL-1336-R1A-42"-N
SIZE: 255 m3
MATERIAL:
MOTOR:
C2-3410-CF-531
1ST CLEANER CELL NO.1 ROW NO.2
C2-3410-LA-511
3410-RL-1028-C1B-1-1/2"-N
3"x1-1/2"
C2-3410-LA-514
3410-SL-1343-R1A-18"-N
3"x1-1/2"
SIZE:
C2-3410-LA-516
1ST CLEANER CONCENTRATE BYPASS LAUNDER NO.2
SIZE:
C2-3410-ST-511
CLEANER CONCENTRATE DISTRIBUTION BOX NO.1
3410
04424
XV
+
3410
04425
XV
+
3400-WR-1737-C1A-1-1/2"-N
3410-WR-1736-C1A-3"-N
3410-WR-1736-C1A-3"-N
3"x1-1/2"
1-1/2"x1/2"
3410-RL-1029-C1B-1-1/2"-N
3410-WR-1782-C1A-1-1/2"-N
C2-3410-CF-521
SIZE:
C2-3410-LA-511
1ST CLEANER CONCENTRATE LAUNDER NO.1
3410
04404
XV
+
3410
04401 A
LV
+
3410-WR-1762-C1A-1-1/2"-N
C2-3410-ST-511
C2-3410-ST-521
C2-3410-CF-531
1-1/2"x1/2"
3430
04201 F
AV
+
3"x1-1/2"
SIZE: 255 m3
MATERIAL:
MOTOR:
C2-3410-CF-521
1ST CLEANER CELL NO.1 ROW NO.1
SIZE:
C2-3410-LA-514
1ST CLEANER CONCENTRATE LAUNDER NO.2
SIZE:
C2-3410-ST-521
CLEANER CONCENTRATE DISTRIBUTION BOX NO.5
SIZE:
C2-3410-LA-513
1ST CLEANER CONCENTRATE BYPASS LAUNDER NO.1
3410-SL-1342-R1A-18"-N
3410
04405
XV
+
3410-WR-1781-C1A-1-1/2"-N
3410
04421 A
LV
+
3410-WR-1736-C1A-3"-N
3430
04201 G
AV
+
3410
04421 B
LV
+
3410-WR-1739-C1A-2"-N
3410-WR-1740-C1A-1-1/2"-N
C2-3410-LA-516
C2-3410-DI-505
SIZE:
C2-3410-DI-505
1ST CLEANER FEED DISTRIBUTOR
C2-3410-LA-513
AG
KM
LT
ISSUED FOR CLIENT REVIEW
22-Dec-11
B
RP
ISSUED FOR COMBINED REVIEW
29-Jun-11
A
12/22/2011
K. MUNDY
A. GUNSON
W. BIE
L. TAMELIN
12/22/2011
2:59:32
PM
WBS: 3400
B
PIPING AND INSTRUMENTATION DIAGRAM
FLOTATION
3400-25J-044
1ST CLEANER DISTRIBUTOR AND CELL 1
D
4
F
B
A
3
2
1 5 6 8
E
7
C
REV.
APPROVED
CHK.
DES.
REV. DATE REVISION DESCRIPTION
CLIENT
LEAD ENGINEER
SCALE DRAWING NUMBER
CHECK DESIGN CHECK DRAWING
DESIGNED BY DRAWN BY
APPROVAL DATE
APPROVAL DATE
APPROVED
CHK.
DES.
REV. DATE REVISION DESCRIPTION REFERENCE DRAWING No.
1:100
0
1:200
5m
10m
0
5m
10m
15m
20m
1:500
10m
0
20m
30m
40m
50m
1:1000
0
100m
50m
1:20
0
0.5m
1m
1.5m
2m
0
1:25
0.5m
1m
1.5m
1:33
1/3
2.5m
2m
0
1m
2m
3m
0
1:50
1m
2m
3m
4m
5m
CAD FILE NAME: P:0CAD000SPEM**
MODEL UPDATED:
DWG. FILE UPDATED:
MANUAL CHANGES MADE: YES NO YES NO YES NO
PROJECT MANAGER
ENGINEERING MANAGER
AREA PROJECTENGINEER
REFERENCE DRAWINGS
SAFETY SHARE:
APPROVAL DATE
CONTRACT
NO.
SAFETY SHARE :
BA6CVA1.IGR
NOTICE: THIS DRAWING HAS NOT BEEN PUBLISHED AND IS THE SOLE
PROPERTY OF FLUOR AND IS LENT TO THE BORROWER FOR THEIR
CONFIDENTIAL USE ONLY, AND IN CONSIDERATION OF THE LOAN OF THIS
DRAWING, THE BORROWER PROMISES AND AGREES TO RETURN IT UPON
REQUEST AND AGREES THAT IT WILL NOT BE REPRODUCED, COPIED LENT
OR OTHERWISE DISPOSED OF DIRECTLY OR INDIRECTLY, NOR USED FOR
ANY OTHER PURPOSE OTHER THAN WHICH IT IS FURNISHED.
NONE
Apr 2011
240K-C2-
3410
04426
XV
+
3410
04406
XV
+
3410
04425
XA
3410
04424
XA
3410
04424
ZS
3410
04425
ZS
MISMATCH
OP/CL OP/CL
MISMATCH
3410
04405
XA
3410
04404
XA
3410
04404
ZS
3410
04405
ZS
MISMATCH
OP/CL
OP/CL
MISMATCH
3410
04406
XA
3410
04426
XA
3410
04426
ZS
3410
04406
ZS
MISMATCH
OP/CL OP/CL
MISMATCH
V V
V V
V
V
V
V
V
V
V
V
V
V
V
V
12"
12"
C2-3430-BX-511
3410-SL-1332-R1A-42"-N
MIN
MIN
3410-SL-1344-R1B-28"-N
V
V
V V
FI FI
3410-SL-1340-R1A-42"-N
FI FI
FI
FI
3410-WR-1736-C1A-3"-N
FC
FC
3410-SL-1341-R1A-42"-N
3410-SL-1345-R1B-28"-N
V
V V
V
MOLY COLLECTOR
INJECTOR, C2-3910-ZM-571
2356 3900-25J-003
TEST REAGENT
INJECTOR, C2-3910-ZM-704
2363 3900-25J-004
MOLY COLLECTOR
INJECTOR, C2-3910-ZM-570
2355 3900-25J-003
TEST REAGENT
INJECTOR, C2-3910-ZM-703
2362 3900-25J-004
3910-RC-1092-C1D-1"-N
3410-RC-1130-C1D-1"-N
3910-RC-1091-C1D-1"-N
3400-RC-1131-C1D-1"-N
FROTHER ALCOHOL
INJECTOR, C2-3910-ZM-688
2365 3900-25J-006
3410-RF-1038-C1D-1"-N
3410-RC-1040-C1D-1"-N
3410-RF-1039-C1D-1"-N
3410-RF-1041-C1D-1"-N
1ST CLEANER FEED
COLUMN TAILING
COLLECTION PUMPBOX,
3495 3400-25J-043
IMAGE
IMAGE
T1
T1 T1
T1
3410
04502
LI
3410
04592
II
3410
04501
LE
3410
04531
LE
3410
04512
LIT
3410
04521
LIC
3410
04522
LIT
3410
04513
AI
3410
04533
AT
3410
04532
LI
3410
04502
LIT
3410
04591
II
3410
04532
LIT
3410
04533
AI
3410
04502
LE
3410
04531
LIT
3410
04521
LIT
3410
04513
AT
3410
04511
LE
3410
04582
HS
3410
04521
LE
3410
04522
LE
3410
04501
LIC
3410
04501
LIT
3410
04531
LIC
3410
04581
II
3410
04511
LIC
3410
04522
LI
3410
04532
LE
3410
04512
LE
3410
04523
AT
3410
04503
AT
3410
04582
II
3410
04582
XA FAULT
3410
04592
HS
3410
04512
LI
3410
04503
AI
3410
04581
HS
3410
04592
XA FAULT
3410
04511
LIT
3410
04591
XA FAULT
3410
04581
XA FAULT
3410
04523
AI
3410
04591
HS
PROCESS WATER
2659 3400-25J-044
1ST CLEANER TAILING
1ST CLEANER FLOTATION
CELL NO.1 ROW NO.1,
2660 3400-25J-044
1ST CLEANER TAILING
1ST CLEANER FLOTATION
CELL NO.1 ROW NO.1,
2661 3400-25J-044
1ST CLEANER CONC.
1ST CLEANER CONCENTRATE
LAUNDER, C2-3410-LA-511
2662 3400-25J-044
1ST CLEANER CONC.
1ST CLEANER CONCENTRATE
BYPASS LAUNDER NO.1,
2663 3400-25J-044
PROCESS WATER
2664 3400-25J-044
1ST CLEANER TAILING
1ST CLEANER FLOTATION
CELL NO.1 ROW NO.2,
2665 3400-25J-044
1ST CLEANER TAILING
1ST CLEANER FLOTATION
CELL NO.1 ROW NO.2,
2666 3400-25J-044
1ST CLEANER CONC.
1ST CL. CONC. LAUNDER
NO.2, C2-3410-LA-514
2668 3400-25J-044
1ST CLEANER CONC.
1ST CL. CONC. LAUNDER
NO.2, C2-3410-LA-516
2669 3400-25J-044
VENDOR
J/SP J/SP
VENDOR
VENDOR
AIR
INTAKE
VENDOR
VENDOR
VENDOR
AIR
INTAKE
AIR
INTAKE
J/SP
VENDOR
VENDOR
VENDOR
J/SP
AIR
INTAKE
VENDOR
VENDOR
VENDOR
VENDOR
C2-3410-ST-512 C2-3410-ST-513
C2-3410-ST-522 C2-3410-ST-523
1-1/2"x1/2"
3410
04511 B
LV
+
3410
04511 A
LV
+
3410-WR-1767-C1A-1-1/2"-N
1-1/2"x1/2"
C2-3410-CF-532
SIZE:
C2-3410-ST-512
CLEANER CONCENTRATE DISTRIBUTION BOX NO.2
3410-WR-1736-C1A-3"-N
3410-WR-1763-C1A-2"-N
3410-WR-1741-C1A-2"-N
SIZE:
C2-3410-ST-522
CLEANER CONCENTRATE DISTRIBUTION BOX NO.6
1-1/2"x1/2"
SIZE: 255 m3
MOTOR:
C2-3410-CF-532
1ST CLEANER FLOTATION CELL NO.2 ROW NO.2
C2-3410-CF-522
SIZE: 255 m3
MOTOR:
C2-3410-CF-522
1ST CLEANER FLOTATION CELL NO.2 ROW NO.1
SIZE:
C2-3410-ST-513
CLEANER CONCENTRATE DISTRIBUTION BOX NO.3
SIZE:
C2-3410-ST-523
CLEANER CONCENTRATE DISTRIBUTION BOX NO.7
3410-SL-1342-R1A-18"-N
3410
04514
XV
+
SIZE: 255 m3
MOTOR:
C2-3410-CF-523
1ST CLEANER FLOTATION CELL NO.3 ROW NO.1
3410-WR-1765-C1A-2"-N
3410-WR-1744-C1A-1-1/2"-N
SIZE: 255 m3
MOTOR:
C2-3410-CF-533
1ST CLEANER FLOTATION CELL NO.3 ROW NO.2
12" 12"
12"
12" 3410
04531 B
LV
+
3410-WR-1764-C1A-1-1/2"-N
3410
04501 B
LV
+
3410-WR-1766-C1A-1-1/2"-N
3410-WR-1742-C1A-1-1/2"-N
3410
04501 A
LV
+
3410
04531 A
LV
+
C2-3410-CF-533
3410-WR-1745-C1A-1-1/2"-N
3410-WR-1736-C1A-3"-N
3410
04515
XV
+
3410
04521 B
LV
+
3410
04521 A
LV
+
1-1/2"x1/2"
C2-3410-CF-523
3410-WR-1743-C1A-2"-N
3410
04505
XV
+
3410
04504
XV
+
3410
04534
XV
+
3410
04535
XV
+
3410
04524
XV
+
3410
04525
XV
+
D
4
F
B
A
3
2
1 5 6 8
E
7
C
REV.
APPROVED
CHK.
DES.
REV. DATE REVISION DESCRIPTION
CLIENT
LEAD ENGINEER
SCALE DRAWING NUMBER
CHECK DESIGN CHECK DRAWING
DESIGNED BY DRAWN BY
APPROVAL DATE
APPROVAL DATE
APPROVED
CHK.
DES.
REV. DATE REVISION DESCRIPTION REFERENCE DRAWING No.
1:100
0
1:200
5m
10m
0
5m
10m
15m
20m
1:500
10m
0
20m
30m
40m
50m
1:1000
0
100m
50m
1:20
0
0.5m
1m
1.5m
2m
0
1:25
0.5m
1m
1.5m
1:33
1/3
2.5m
2m
0
1m
2m
3m
0
1:50
1m
2m
3m
4m
5m
CAD FILE NAME: P:0CAD000SPEM**
MODEL UPDATED:
DWG. FILE UPDATED:
MANUAL CHANGES MADE: YES NO YES NO YES NO
PROJECT MANAGER
ENGINEERING MANAGER
AREA PROJECT ENGINEER
REFERENCE DRAWINGS
SAFETY SHARE:
APPROVAL DATE
CONTRACT
NO.
SAFETY SHARE :
BA6CVA1.IGR
NOTICE: THIS DRAWING HAS NOT BEEN PUBLISHED AND IS THE SOLE
PROPERTY OF FLUOR AND IS LENT TO THE BORROWER FOR THEIR
CONFIDENTIAL USE ONLY, AND IN CONSIDERATION OF THE LOAN OF THIS
DRAWING, THE BORROWER PROMISES AND AGREES TO RETURN IT UPON
REQUEST AND AGREES THAT IT WILL NOT BE REPRODUCED, COPIED LENT
OR OTHERWISE DISPOSED OF DIRECTLY OR INDIRECTLY, NOR USED FOR
ANY OTHER PURPOSE OTHER THAN WHICH IT IS FURNISHED.
NONE
Apr 2011
240K-C2-
VENDOR
VENDOR
VENDOR
(LAUNDER)
(LAUNDER)
(LAUNDER)
(LAUNDER)
(LAUNDER)
(LAUNDER)
(LAUNDER)
(LAUNDER)
VENDOR
VENDOR
VENDOR
VENDOR
3410-WR-1736-C1A-3"-N
3410-WR-1736-C1A-3"-N
AG
KM
LT
ISSUED FOR CLIENT REVIEW
22-Dec-11
B
RP
ISSUED FOR COMBINED REVIEW
29-Jun-11
A
12/22/2011
K. MUNDY
A. GUNSON
W. BIE
L. TAMELIN
12/22/2011
2:57:37
PM
WBS: 3400
B
PIPING AND INSTRUMENTATION DIAGRAM
FLOTATION
3400-25J-045
FIRST CLEANER CELLS 2 AND 3
3410
04508 A
AE
3410
04508 A
AIT
3410
04508 A
AI
ES
PH
C2-3410-LA-104
PH CONTROL,
3410-AV-04508A
1377 3400-25J-001
C2-3410-LA-204
PH CONTROL,
3410-AV-04508B
1380 3400-25J-001
C2-3410-LA-404
PH CONTROL, 3410-AV-4508C
2813 3400-25J-006
3410
04504
XA
3410
04504
ZS
MISMATCH
OP/CL
3410
04505
ZS
OP/CL
3410
04505
XA
MISMATCH
3410
04514
XA
3410
04514
ZS
MISMATCH
3410
04515
ZS
OP/CL
3410
04515
XA
MISMATCH
OP/CL
3410
04524
XA
3410
04524
ZS
MISMATCH
OP/CL
3410
04505
ZS
OP/CL
3410
04505
XA
MISMATCH
3410
04534
XA
3410
04534
ZS
MISMATCH
3410
04535
ZS
OP/CL
3410
04535
XA
MISMATCH
OP/CL
3410
04508 B
AE
3410
04508 B
AIT
3410
04508 B
AI
ES
PH
V
V
V
V
V V
V
V
V
V
V V
V
V
V
V
V
V
V
V
V
V
V
V
3410
04508
HY
3410
04508
AIC
AVE
SEL
PROCESS WATER
2655 3400-25J-047
1ST CLEANER TAILING
1ST CL. FLOTATION CELL
NO.4, ROW NO.1,
2657 3400-25J-047
1ST CLEANER TAILING
1ST CL. FLOTATION CELL
NO.4, ROW NO.1,
2658 3400-25J-047
1ST CLEANER CONC.
CONCENTRATE LAUNDER,
C2-3410-LA-104
2670 3400-25J-047
1ST CLEANER CONC.
1ST CLEANER CONC. BYPASS
LAUNDER, C2-3410-LA-513
2671 3400-25J-047
PROCESS WATER
2672 3400-25J-047
1ST CLEANER TAILING
1ST CL. FLOTATION CELL
NO.4, ROW NO.2,
2673 3400-25J-047
1ST CLEANER TAILING
1ST CL. FLOTATION CELL
NO.4, ROW NO.2,
2674 3400-25J-047
1ST CLEANER CONC.
1ST CLEANER CONC.
LAUNDER, C2-3410-LA-514
2676 3400-25J-047
1ST CLEANER CONC.
1ST CLEANER CONC. BYPASS
LAUNDER, C2-3410-LA-516
2677 3400-25J-047
3410-SL-1346-R1B-28"-N
3410-SL-1347-R1B-28"-N
3410-SL-1348-R1B-28"-N
3410-SL-1349-R1B-28"-N
3410-SL-1343-R1A-18"-N
C2-3410-LA-513
C2-3410-CF-524
C2-3410-CF-524
C2-3410-CFF-534
C2-3410-CFF-534
V
V
V
V
V
V
V
V
V
V
V
V
V
V
V
V
FI FI FI
FI
FI
FI
FI FI
C2-3410-CF-531
C2-3410-CF-531
C2-3410-CF-521
C2-3410-CF-521
IMAGE
IMAGE
IMAGE
IMAGE
D
4
F
B
A
3
2
1 5 6 8
E
7
C
REV.
APPROVED
CHK.
DES.
REV. DATE REVISION DESCRIPTION
CLIENT
LEAD ENGINEER
SCALE DRAWING NUMBER
CHECK DESIGN CHECK DRAWING
DESIGNED BY DRAWN BY
APPROVAL DATE
APPROVAL DATE
APPROVED
CHK.
DES.
REV. DATE REVISION DESCRIPTION REFERENCE DRAWING No.
1:100
0
1:200
5m
10m
0
5m
10m
15m
20m
1:500
10m
0
20m
30m
40m
50m
1:1000
0
100m
50m
1:20
0
0.5m
1m
1.5m
2m
0
1:25
0.5m
1m
1.5m
1:33
1/3
2.5m
2m
0
1m
2m
3m
0
1:50
1m
2m
3m
4m
5m
CAD FILE NAME: P:0CAD000SPEM**
MODEL UPDATED:
DWG. FILE UPDATED:
MANUAL CHANGES MADE: YES NO YES NO YES NO
PROJECT MANAGER
ENGINEERING MANAGER
AREA PROJECTENGINEER
REFERENCE DRAWINGS
SAFETY SHARE:
APPROVAL DATE
CONTRACT
NO.
SAFETY SHARE :
BA6CVA1.IGR
NOTICE: THIS DRAWING HAS NOT BEEN PUBLISHED AND IS THE SOLE
PROPERTY OF FLUOR AND IS LENT TO THE BORROWER FOR THEIR
CONFIDENTIAL USE ONLY, AND IN CONSIDERATION OF THE LOAN OF THIS
DRAWING, THE BORROWER PROMISES AND AGREES TO RETURN IT UPON
REQUEST AND AGREES THAT IT WILL NOT BE REPRODUCED, COPIED LENT
OR OTHERWISE DISPOSED OF DIRECTLY OR INDIRECTLY, NOR USED FOR
ANY OTHER PURPOSE OTHER THAN WHICH IT IS FURNISHED.
NONE
Apr 2011
240K-C2-
3410
04611
LIT
3410
04613
AI
3410
04623
AT
3410
04622
LI
3410
04613
AT
3410
04623
AI
3410
04632
LIT
3410
04631
LIC
3410
04603
AI
3410
04603
AT
3410
04682
II
3410
04602
LI
3410
04682
XA FAULT
3410
04602
LIT
3410
04692
II
3410
04612
LIT
3410
04612
LI
3410
04681
XA FAULT
3410
04621
LIT
3410
04681
II
3410
04621
LIC 3410
04633
AT
3410
04681
HS
3410
04682
HS
3410
04631
LE
3410
04602
LE
3410
04632
LI
3410
04691
XA FAULT
3410
04633
AI
3410
04601
LE
3410
04601
LIC
3410
04622
LE
3410
04601
LIT
3410
04692
XA FAULT
3410
04621
LE
3410
04632
LE
3410
04612
LE
3410
04631
LIT
3410
04691
HS
3410
04622
LIT
3410
04611
LE
3410
04692
HS
3410
04691
II
3410
04611
LIC
VENDOR
VENDOR
VENDOR
AIR
INTAKE
AIR
INTAKE
J/SP
J/SP
AIR
INTAKE
J/SP
AIR
INTAKE
J/SP
VENDOR
VENDOR
VENDOR
VENDOR
VENDOR
VENDOR
VENDOR
VENDOR
VENDOR
VENDOR
VENDOR
VENDOR
VENDOR
VENDOR
VENDOR
(LAUNDER)
(LAUNDER)
C2- C2-
C2-
C2-
3410
04631 B
LV
+
3410
04611 A
LV
+
3410
04611 B
LV
+
3410
04615
XV
+
3410
04614
XV
+
3410
04621 A
LV
+
3410
04601 B
LV
+
3410
04601 A
LV
+
3410
04635
XV
+
3410
04621 B
LV
+
3410
04631 A
LV
+
C2-
C2-
1-1/2"x1/2"
1-1/2"x1/2"
1-1/2"x1/2"
1-1/2"x1/2"
12"
12"
12"
12"
3410
04634
XV
+
T1
T1 T1
T1
(LAUNDER)
(LAUNDER)
(LAUNDER)
(LAUNDER)
(LAUNDER)
(LAUNDER)
PROCESS WATER
2636 3400-25J-045
1ST CLEANER FLOTATION
CELL #3, ROW #1
2637 3400-25J-045
1ST CLEANER FLOTATION
CELL #3, ROW #1
2638 3400-25J-045
C2-3410-LA-511
2639 3400-25J-045
C2-3410-LA-513
2640 3400-25J-045
PROCESS WATER
2641 3400-25J-045
1ST CLEANER FLOTATION
CELL #3, ROW #2
2642 3400-25J-045
1ST CLEANER FLOTATION
CELL #3, ROW #2
2643 3400-25J-045
C2-3410-LA-514
2644 3400-25J-045
C2-3410-LA-516
2645 3400-25J-045
3410
04616
XV
+
3410
04604
XV
+
3410
04605
XV
+
C2-
3410
04636
XV
+
3410
04624
XV
+
3410
04625
XV
+
C2-
SIZE:
C2-
1ST CLEANER CONCENTRATE DISTRIBUTION BOX # 4
SIZE:
C2-
1ST CLEANER CONCENTRATE DISTRIBUTION BOX # 10
VENDOR
VENDOR
(LAUNDER)
(LAUNDER)
3410-WR-
-C1A-2"-N
SIZE: 250 M3
MATERIAL:
MOTOR:
C2-
1ST CLEANER FLOTATION CELL #5 ROW #1
3410-WR- -C1A-1-1/2"-N
SIZE:
C2-
1ST CLEANER CONCENTRATE DISTRIBUTION BOX # 5
3410-WR- -C1A-1-1/2"-N
3410-WR- -C1A-1-1/2"-N
3410-WR-
-C1A-2"-N
3410-WR- -C1A-1-1/2"-N
3410-WR- -C1A-1-1/2"-N
SIZE: 250 M3
MATERIAL:
MOTOR:
C2-
1ST CLEANER FLOTATION CELL #4 ROW #2
3410-WR- -C1A-3"-N
3410-WR- -C1A-3"-N
SIZE:
C2-
1ST CLEANER CONCENTRATE DISTRIBUTION BOX # 11
SIZE: 250 M3
MATERIAL:
MOTOR:
C2-
1ST CLEANER FLOTATION CELL #5 ROW #2
SIZE: 250 M3
MATERIAL:
MOTOR:
C2-
1ST CLEANER FLOTATION CELL #4 ROW #1
3410-WR-
-C1A-2"-N
3410-WR-
-C1A-2"-N
3410-WR-
-C1A-3"-N
3410-WR- -C1A-3"-N
3410-WR- -C1A-3"-N
AG
KM
LT
ISSUED FOR CLIENT REVIEW
22-Dec-11
B
RP
ISSUED FOR COMBINED REVIEW
29-Jun-11
A
12/22/2011
K. MUNDY
A. GUNSON
W. BIE
L. TAMELIN
12/21/2011
7:38:10
AM
WBS: 3400
B
PIPING AND INSTRUMENTATION DIAGRAM
FLOTATION
3400-25J-046
FIRST CLEANER CELLS 4 AND 5
3410
04605
XA
3410
04604
XA
3410
04604
ZS
3410
04605
ZS
3410
04625
XA
3410
04624
XA
3410
04624
ZS
3410
04625
ZS
3410
04614
XA
3410
04614
ZS
3410
04615
XA
3410
04615
ZS
3410
04616
XA
3410
04616
ZS
MISSMATCH
MISSMATCH
MISSMATCH
MISSMATCH
MISSMATCH
MISSMATCH
MISSMATCH
3410
04634
XA
3410
04634
ZS
3410
04635
XA
3410
04635
ZS
3410
04636
XA
3410
04636
ZS
MISSMATCH
MISSMATCH
MISSMATCH
OP/CL OP/CL
OP/CL OP/CL OP/CL
OP/CL
OP/CL
OP/CL
OP/CL
OP/CL
D
4
F
B
A
3
2
1 5 6 8
E
7
C
REV.
APPROVED
CHK.
DES.
REV. DATE REVISION DESCRIPTION
CLIENT
LEAD ENGINEER
SCALE DRAWING NUMBER
CHECK DESIGN CHECK DRAWING
DESIGNED BY DRAWN BY
APPROVAL DATE
APPROVAL DATE
APPROVED
CHK.
DES.
REV. DATE REVISION DESCRIPTION REFERENCE DRAWING No.
1:100
0
1:200
5m
10m
0
5m
10m
15m
20m
1:500
10m
0
20m
30m
40m
50m
1:1000
0
100m
50m
1:20
0
0.5m
1m
1.5m
2m
0
1:25
0.5m
1m
1.5m
1:33
1/3
2.5m
2m
0
1m
2m
3m
0
1:50
1m
2m
3m
4m
5m
CAD FILE NAME: P:0CAD000SPEM**
MODEL UPDATED:
DWG. FILE UPDATED:
MANUAL CHANGES MADE: YES NO YES NO YES NO
PROJECT MANAGER
ENGINEERING MANAGER
AREA PROJECT ENGINEER
REFERENCE DRAWINGS
SAFETY SHARE:
APPROVAL DATE
CONTRACT
NO.
SAFETY SHARE :
BA6CVA1.IGR
NOTICE: THIS DRAWING HAS NOT BEEN PUBLISHED AND IS THE SOLE
PROPERTY OF FLUOR AND IS LENT TO THE BORROWER FOR THEIR
CONFIDENTIAL USE ONLY, AND IN CONSIDERATION OF THE LOAN OF THIS
DRAWING, THE BORROWER PROMISES AND AGREES TO RETURN IT UPON
REQUEST AND AGREES THAT IT WILL NOT BE REPRODUCED, COPIED LENT
OR OTHERWISE DISPOSED OF DIRECTLY OR INDIRECTLY, NOR USED FOR
ANY OTHER PURPOSE OTHER THAN WHICH IT IS FURNISHED.
NONE
Apr 2011
240K-C2-
3410
04711
LIT
3410
04713
AI
3410
04723
AT
3410
04722
LI
3410
04713
AT
3410
04723
AI 3410
04732
LIT
3410
04731
LIC
3410
04703
AI
3410
04703
AT
3410
04782
II
3410
04703
LI
3410
04782
XA FAULT
3410
04703
LIT
3410
04792
II
3410
04712
LIT
3410
04712
LI
3410
04781
XA FAULT
3410
04721
LIT
3410
04781
II
3410
04721
LIC
3410
04733
AT
3410
04781
HS
3410
04782
HS
3410
04731
LE
3410
04703
LE
3410
04732
LI
3410
04791
XA FAULT
3410
04733
AI
3410
04701
LE
3410
04701
LIC
3410
04722
LE
3410
04701
LIT
3410
04792
XA FAULT
3410
04721
LE
3410
04732
LE
3410
04712
LE
3410
04731
LIT
3410
04791
HS
3410
04722
LIT
3410
04711
LE
3410
04792
HS
3410
04791
II
3410
04711
LIC
VENDOR
VENDOR
VENDOR
AIR
INTAKE
AIR
INTAKE
J/SP
J/SP
AIR
INTAKE
J/SP
AIR
INTAKE
J/SP
VENDOR
VENDOR
VENDOR
VENDOR
VENDOR
VENDOR
VENDOR
VENDOR
VENDOR
VENDOR
VENDOR
VENDOR
VENDOR
VENDOR
VENDOR
(LAUNDER)
(LAUNDER)
C2-3410-CF-534 C2-3410-CF-537
C2-3410-LA-512
3410
04731 B
LV
+
3410
04711 A
LV
+
3410
04711 B
LV
+
3410
04721 A
LV
+
3410
04701 B
LV
+
3410
04701 A
LV
+
3410
04721 B
LV
+
3410
04731 A
LV
+
C2-3410-CF-527
C2-3410-CF-524
1-1/2"x1/2"
1-1/2"x1/2"
1-1/2"x1/2"
1-1/2"x1/2"
12"
12"
12"
12"
T1
T1 T1
T1
(LAUNDER)
(LAUNDER)
(LAUNDER)
(LAUNDER)
(LAUNDER)
(LAUNDER)
3410
04714
XV
+
3410
04715
XV
+
C2-3410-ST-514
3410
04724
XV
+
3410
04725
XV
+
C2-3410-ST-524
SIZE:
C2-3410-ST-514
CLEANER CONCENTRATE DISTRIBUTION BOX NO. 4
SIZE:
C2-3410-ST-524
CLEANER CONCENTRATE DISTRIBUTION BOX NO. 8
VENDOR
VENDOR
(LAUNDER)
(LAUNDER)
3410
04716
XV
+
3410
04726
XV
+
C2-3410-LA-515
PROCESS WATER
2655 3400-25J-045
1ST CLEANER TAILING
1ST CLEANER FLOTATION
CELL NO.3, ROW NO.1,
2657 3400-25J-045
1ST CLEANER TAILING
1ST CLEANER FLOTATION
CELL NO.3, ROW NO.1,
2658 3400-25J-045
1ST CLEANER CONC.
FIRST CLEANER CONC.
C2-3410-LA-511
2670 3400-25J-045
1ST CLEANER CONC.
FIRST CLEANER CONC.
C2-3410-LA-513
2671 3400-25J-045
PROCESS WATER
2672 3400-25J-045
1ST CLEANER TAILING
1ST CLEANER FLOTATION
CELL NO. 3, ROW NO. 2,
2673 3400-25J-045
1ST CLEANER TAILING
1ST CLEANER FLOTATION
CELL NO. 3, ROW NO. 2,
2674 3400-25J-045
1ST CLEANER CONC.
1ST CLEANER CONC.
LAUNDER NO. 2,
2676 3400-25J-045
1ST CLEANER CONC.
1ST CLEANER CONC. BYPASS
LAUNDER NO. 2,
2677 3400-25J-045
SIZE: 1.2 m x 1.5 m x 1.1 m
C2-3410-LA-515
CLEANER SCAVENGER CONCENTRATE LAUNDER NO. 2
PROCESS WATER
2702 3400-25J-048
CLEANER SCAV. TAILING
CLEANER SCAVENGER CELL
NO. 2, ROW NO. 1,
2703 3400-25J-048
CLEANER SCAV. TAILING
CLEANER SCAVENGER CELL
NO. 2, ROW NO.1,
2704 3400-25J-048
CLEANER SCAV. CONC.
CLEANER SCAV. CONC.
LAUNDER NO. 1
2705 3400-25J-048
PROCESS WATER
2707 3400-25J-048
CLEANER SCAV. TAILING
CLEANER SCAVENGER CELL
NO. 2, ROW NO. 2,
2708 3400-25J-048
CLEANER SCAV. TAILING
CLEANER SCAVENGER CELL
NO. 2, ROW NO. 2,
2709 3400-25J-048
CLEANER SCAV. CONC.
CLEANER SCAV. CONC.
LAUNDER NO. 2
2710 3400-25J-048
1ST CLEANER CONC.
RECLEANER FEED PUMPBOX,
C2-3410-BX-514
2712 3400-25J-048
1ST CLEANER CONC.
RECLEANER FEED PUMPBOX
C2-3410-BX-514
2713 3400-25J-048
3410-SL-1343-R1A-18"-N
SIZE: 255 m3
MATERIAL:
MOTOR:
C2-3410-CF-527
CLEANER SCAVENGER FLOTATION CELL NO. 1 ROW NO. 1
3410-WR-1736-C1A-3"-N
3410-WR-1754-C1A-1-1/2"-N
3410-WR-1755-C1A-1-1/2"-N
3410-WR-1736-C1A-3"-N
3410-WR-1773-C1A-2"-N
SIZE: 255 m3
MATERIAL:
MOTOR:
C2-3410-CF-524
1ST CLEANER FLOTATION CELL NO. 4 ROW NO. 1
SIZE: 255 m3
MATERIAL:
MOTOR:
C2-3410-CF-534
1ST CLEANER FLOTATION CELL NO. 4 ROW NO. 2
3410-WR-1776-C1A-1-1/2"-N 3410-WR-1777-C1A-3"-N
3410-WR-1736-C1A-3"-N
3410-WR-1775-C1A-2"-N
SIZE: 255 m3
MATERIAL:
MOTOR:
C2-3410-CF-537
CLEANER SCAVENGER FLOTATION CELL NO. 1 ROW NO.2
3410-WR-1751-C1A-2"-N
3410-WR-1752-C1A-1-1/2"-N
3410-WR-1774-C1A-1-1/2"-N
SIZE:
C2-3410-LA-512
CLEANER SCAVENGER CONCENTRATE LAUNDER NO. 1
3410-WR-1753-C1A-2"-N
AG
KM
LT
ISSUED FOR CLIENT REVIEW
22-Dec-11
B
RP
ISSUED FOR COMBINED REVIEW
29-Jun-11
A
12/22/2011
K. MUNDY
A. GUNSON
W. BIE
L. TAMELIN
12/21/2011
6:06:55
PM
WBS: 3400
B
PIPING AND INSTRUMENTATION DIAGRAM
FLOTATION
3400-25J-047
1ST CLEA. CELL 4 & CLEANER SCAV CELL 1
3410
04714
ZS
3410
04715
ZS
3410
04716
ZS
OP/CL
OP/CL
OP/CL
3410
04714
XA
3410
04715
XA
3410
04716
XA
MISMATCH
MISMATCH
MISMATCH
3410
04724
ZS
3410
04725
ZS
3410
04726
ZS
OP/CL
OP/CL
3410
04724
XA
3410
04725
XA
3410
04726
XA
MISMATCH
MISMATCH MISMATCH
OP/CL
V V
V
V
V
V V
V
V
V
V
V
V
V
V V
V
V
V
V
3410-SL-1355-R1B-28"-N
3410-SL-1354-R1B-28"-N
3410-SL-1357-R1B-28"-N
3410-SL-1356-R1B-28"-N
MOLY COLLECTOR
INJECTOR, C2-3910-ZM-573
2358 3900-25J-003
MOLY COLLECTOR
INJECTOR, C2-3910-ZM-572
2357 3900-25J-003
3910-RC-1090-C1D-1"-N
3910-RC-1089-C1D-1"-N
V
V
V
V
V
V
V V
V
V
V V
V
V
V
V
FI FI FI
FI FI FI
C2-3410-CF-523
C2-3410-CF-523
C2-3410-CF-533
C2-3410-CF-533
C2-3410-LA-514
C2-3410-LA-516
C2-3410-CF-528
C2-3410-CF-528
1ST CLEANER CONC.
1ST CLEANER CONC.
SAMPLER NO.1,
2720 3400-25J-053
C2-341--SA-530
C2-3410-CF-538
C2-3410-CF-538
1ST CLEANER CONC.
1ST CLEANER CONC.
SAMPLER NO. 2,
2736 3400-25J-053
C2-341--SA-533
3410-SL-1342-R1A-18"-N
IMAGE
IMAGE
IMAGE
IMAGE
3410-RC-1167-C1D-1"-N
3410-RC-1159-C1D-1"-N
DEFOAMER
INJECTOR, C2-3910-ZM-649
4113 3500-25J-033
DEFOAMER
INJECTOR, C2-3910-ZM-650
4117 3500-25J-033
T3
P.O NO.:
VENDOR DWG NO.:
VENDOR:
P.O NO.:
VENDOR DWG NO.:
VENDOR:
M
3410
04883
II
3410
04811
DX
3410
04811
DE
3410
04811
DIT
3410
04883
XA
3410
04806
PI
3410
04811
FQI
3410
04810
LE
3410
04811
FIT
3410
04883
HS
J/SP
3410
04810
LIT
3410
04811
FI
3410
04813
PI
3410
04810
LIC
3410
04805
PIT
3410
04805
PI
L, P2
M
3410
04804
FIT
3410
04811
DI
3410
04804
FI
3410
04811
FY
3410
04802
LE
3410
04801
LIC
3410
04881
XA FAULT
3410
04802
LIT
3410
04881
II
3410
04802
LI
3410
04881
HS
3410
04801
LE
3410
04801
LIT
3410
04821
LIC
3410
04891
HS
3410
04821
LIT
3410
04822
LI
3410
04891
II
3410
04891
XA FAULT
3410
04821
LE
3410
04822
LIT
3410
04822
LE
CLEANER SCAV. TAILING
CLEANER SCAVENGER/1ST
CLEANER IN-STREAM
2734 3400-25J-053
CLEANER SCAV. TAILING
CLEANER SCAVENGER/ 1ST
CLEANER IN-STREAM
2735 3400-25J-053
CLEANER SCAV. CONC.
CLEANER SCAVENGER CONC.
SAMPLER NO.2,
2737 3400-25J-053
CLEANER SCAV. CONC.
CLEANER SCAVENGER CONC.
SAMPLER NO.1,
2721 3400-25J-053
GLAND SEAL WATER
2745 3900-25J-023
PROCESS WATER
2749 3900-25J-014
CLEANER SCAV. TAILING
TAILING COLLECTION
LAUNDER NO.1,
2750 3700-25J-001
ANALYZER, C2-3410-AZ-509
CLEANER SCAV. TAILING
TAILING COLLECTION
LAUNDER NO.1,
2751 3700-25J-001
ANALYZER, C2-3410-AZ-509
RECLEANER FEED
RECLEANER CELL NO.1,
C2-3410-CF-541
2748 3400-25J-051
PROCESS WATER
2702 3400-25J-047
CLEANER SCAV. TAILING
CLEANER SCAV. CELL NO.1,
ROW NO.1, C2-3410-C-527
2703 3400-25J-047
CLEANER SCAV. TAILING
CLEANER SCAV. CELL NO.1,
ROW NO.1, C2-3410-C-527
2704 3400-25J-047
CLEANER SCAV. CONC.
CLEANER SCAV. CONC.
LAUNDER, C2-3410-LA-512
2705 3400-25J-047
PROCESS WATER
2707 3400-25J-047
CLEANER SCAV. TAILING
CLEANER SCAV. CELL NO.1,
ROW NO.2, C2-3410-CF-515
2708 3400-25J-047
CLEANER SCAV. TAILING
CLEANER SCAV. CELL NO.1,
ROW NO.2, C2-3410-CF-515
2709 3400-25J-047
CLEANER SCAV. CONC.
CLEANER SCAV. CONC.
LAUNDER, C2-3410-LA-515
2710 3400-25J-047
1ST CLEANER CONC.
1ST CLEANER CONC. BYPASS
LAUNDER NO.2,
2712 3400-25J-047
1ST CLEANER CONC.
1ST CLEANER CONC. BYPASS
LAUNDER NO.1,
2713 3400-25J-047
MIN
AFD
TO FLOOR
MIN
H, P2
L, P2
LL, P1
L, P2
LL, P1
BY
VENDOR
BY
VENDOR
FAULT
VENDOR
AIR
INTAKE
J/SP
VENDOR
VENDOR
J/SP
VENDOR
AIR
INTAKE
3410
04808
XV
+
3410
04807
XV
+
C2-3410-BX-514
ES
1-1/2" PL
ES
1-1/2" PL
ES
1-1/2"x1/2"
C2-3410-CF-538
3410-WR-1778-C1A-2"-N
3410-WR-1779-C1A-1-1/2"-N
3410-SL-1364-R1A-30"-N
3"
1/2" BA-2000
3410
04804
FE
+
C2-3410-PP-517
BA
3410
04811
FE
+
1-1/2" PL
3410-WR-1780-C1A-3"-N
12"
3410
04821 B
LV
+
3410-WR-1736-C1A-3"-N
C2-3410-SA-531
C2-3410-SA-534
SIZE: 255 m3
MOTOR:
C2-3410-CF-528
CLEANER SCAVENGER CELL NO.2, ROW NO.1
SIZE: 255 m3
MOTOR:
C2-3410-CF-538
CLEANER SCAVENGER CELL NO.2, ROW NO.2
SIZE:
C2-3410-SA-531
CLEANER SCAVENGER TAILING SAMPLER NO.1
SIZE:
C2-3410-SA-534
CLEANER SCAVENGER TAILING SAMPLER NO.2
SIZE:
MATERIAL:
CAPACITY:67.0 m^3
TRIM:3410-SL-1363-C1B-N
C2-3410-BX-514
RECLEANER FEED PUMPBOX
SIZE:
MATERIAL:
MOTOR:
C2-3410-PP-517
RECLEANER FEED PUMP
FI
3410
04801 B
LV
+
3410-WR-1756-C1A-2"-N
1-1/2"x1/2"
3410-WR-1757-C1A-1-1/2"-N
12"
3410-WR-1758-C1A-3"-N
3410-WR-1736-C1A-3"-N
C2-3410-CF-528
D
4
F
B
A
3
2
1 5 6 8
E
7
C
REV.
APPROVED
CHK.
DES.
REV. DATE REVISION DESCRIPTION
CLIENT
LEAD ENGINEER
SCALE DRAWING NUMBER
CHECK DESIGN CHECK DRAWING
DESIGNED BY DRAWN BY
APPROVAL DATE
APPROVAL DATE
APPROVED
CHK.
DES.
REV. DATE REVISION DESCRIPTION REFERENCE DRAWING No.
1:100
0
1:200
5m
10m
0
5m
10m
15m
20m
1:500
10m
0
20m
30m
40m
50m
1:1000
0
100m
50m
1:20
0
0.5m
1m
1.5m
2m
0
1:25
0.5m
1m
1.5m
1:33
1/3
2.5m
2m
0
1m
2m
3m
0
1:50
1m
2m
3m
4m
5m
CAD FILE NAME: P:0CAD000SPEM**
MODEL UPDATED:
DWG. FILE UPDATED:
MANUAL CHANGES MADE: YES NO YES NO YES NO
PROJECT MANAGER
ENGINEERING MANAGER
AREA PROJECT ENGINEER
REFERENCE DRAWINGS
SAFETY SHARE:
APPROVAL DATE
CONTRACT
NO.
SAFETY SHARE :
BA6CVA1.IGR
NOTICE: THIS DRAWING HAS NOT BEEN PUBLISHED AND IS THE SOLE
PROPERTY OF FLUOR AND IS LENT TO THE BORROWER FOR THEIR
CONFIDENTIAL USE ONLY, AND IN CONSIDERATION OF THE LOAN OF THIS
DRAWING, THE BORROWER PROMISES AND AGREES TO RETURN IT UPON
REQUEST AND AGREES THAT IT WILL NOT BE REPRODUCED, COPIED LENT
OR OTHERWISE DISPOSED OF DIRECTLY OR INDIRECTLY, NOR USED FOR
ANY OTHER PURPOSE OTHER THAN WHICH IT IS FURNISHED.
NONE
Apr 2011
240K-C2-
T1
T1
TO FLOOR
AG
KM
LT
ISSUED FOR CLIENT REVIEW
22-Dec-11
B
RP
ISSUED FOR COMBINED REVIEW
29-Jun-11
A
12/22/2011
K. MUNDY
A. GUNSON
W. BIE
L. TAMELIN
12/22/2011
2:42:16
PM
WBS: 3400
B
PIPING AND INSTRUMENTATION DIAGRAM
FLOTATION
3400-25J-048
CLEANER SCAV CELL 2 & RECLEANER FEED
3410
04803
AI
3410
04803
AT
3410
04823
AI
3410
04823
AT
3410-SL-1385-R1A-4"-N
3410-SL-1375-R1A-12"-N
3410-SL-1386-R1A-4"-N
3410-SL-1667-R1A-26"-N
3410-SL-1382-R1A-12"-N
3410-SL-1365-R1A-24"-N
3410
04807
ZS
3410
04807
XA
OP/CL
MISMATCH
3410
04808
ZS
3410
04808
XA
MISMATCH
C2-3430-SA-532
C2-3430-SA-535
MASS FLOW
3410
04812
XV
+
FI
V
V
FI
C2-3410-LA-001
C2-3410-LA-001
3410-SL-1392-R1A-26"-N
3410-SL-1360-R1B-28"-N
3410-SL-1361-R1B-28"-N
3410-WR-1784-C1A-3"-N
3410-SL-1342-R1A-18"-N
3410-SL-1343-R1A-18"-N
V V V
V
V V V
V
3410-WG-1099-C1A-1-1/2"-N
3400-RC-1086-C1D-1"-N
3410-SL-1358-R1B-28"-N
3410-SL-1359-R1B-28"-N
C2-3410-LA-513
C2-3410-LA-516
IMAGE
IMAGE
M
V3
3400
B
HS
MOLY COLLECTOR
INJECTOR, C2-3910-ZM-576
2361 3900-25J-003
T1 T1
T1
T3
P.O NO.:
VENDOR DWG NO.:
VENDOR:
3410
05104
LI
3410
05103
LIC
3410
05183
II
3410
05183
XA FAULT
3410
05184
II
3410
05184
XA FAULT
3410
05101
LIC
3410
05182
II
3410
05182
XA FAULT
3410
05102
LI
3410
05103
LIT
3410
05104
LIT
3410
05101
LIT
3410
05183
HS
3410
05102
LIT
3410
05104
LE
3410
05103
LE
3410
05102
LE
3410
05101
LE
3410
05184
HS
3410
05182
HS
3410
05114
FIT
3410
05191
HS
J/SP
3410
05114
FI
3410
05111
LIC
3410
05111
LIT
3410
05115
PI
L, P2
3410
05118
ZS
3410
05115
PIT
M
3410
05191
XA
3410
05111
LE
3410
05191
II
3410
05116
PI
3410
05117
ZS
OP/CL
3410
05117
XA
MISMATCH
3410
05118
XA
MIN.
MIN.
RECLEANER CONCENTRATE
RECLEANER CONCENTRATE
SAMPLER C2-3410-SA-537
2722 3400-25J-053
RECLEANER TAILING
CLNR SCAVENGER/1ST CLNR
ANALYZER C2-3410-AZ-509
2744 3400-25J-053
RECLEANER FEED
RECLEANER FEED PUMPBOX
C2-3410-PP-517
2748 3400-25J-048
GLAND SEAL WATER
3505 3900-25J-023
RECLEANER TAILING
ROUGHER CONC.
COLLECTION PUMPBOX
2183 3400-25J-022
PROCESS WATER
2827 3900-25J-014
VENDOR
VENDOR
VENDOR
VENDOR
NOTE 2
J/SP J/SP
J/SP
AIR
INTAKE
AIR
INTAKE
NOTE 2
NOTE 2
AIR
INTAKE
VENDOR
C2-2420-BX-502
AFD
TO FLOOR
L, P2
LL, P1
TO FLOOR
MIN
MIN
FAULT
H, P2
L, P2
LL, P1
BY
VENDOR
BY
VENDOR
MISMATCH
C2-3410-LA-508
3"
3410-SL-1303-R1A-26"-N
C2-3410-PP-171
BA
3410
05117
XV
+
3410
05118
XV
+
FI
FI
1/2" BA
ES
1-1/2" PL
SIZE: 160 m3
MOTOR:
C2-3410-CF-542
1ST RECLEANER CELL NO. 2
12" 12"
3410
05103
LV
+
3410
05101 A
LV
+
1-1/2"x1/2"
12"
C2-3410-CF-542
3410
05101 B
LV
+
1-1/2"x1/2"
SIZE:
C2-3410-LA-506
1ST RECLEANER CONCENTRATE LAUNDER
C2-3410-LA-506
3410-WR-1785-C1A-3"-N
SIZE: 160 m3
MOTOR:
C2-3410-CF-543
1ST RECLEANER CELL NO. 3
C2-3410-CF-543
1-1/2" PL
3410
05114
FE
+
C2-3410-BX-051
C2-3410-CF-541 3410-SL-1372-C1B-3"-N
C2-3410-SA-536
SIZE:
C2-3410-SA-536
RECLEANER TAILING SAMPLER
3410-WR-1794-C1A-1-1/2"-N
3410-WR-1792-C1A-2"-N
3410-WR-1790-C1A-2"-N
3410-WR-1789-C1A-1-1/2"-N
3410-WR-1788-C1A-2"-N
3410-SL-1369-R1B-28"-N
3410-SL-1368-R1B-28"-N
3410-SL-1367-R1B-28"-N
28"x18"
28"x18"
28"x18"
AG
KM
LT
ISSUED FOR CLIENT REVIEW
22-Dec-11
B
RP
ISSUED FOR COMBINED REVIEW
29-Jun-11
A
12/22/2011
K. MUNDY
A. GUNSON
W. BIE
L. TAMELIN
12/22/2011
2:41:27
PM
WBS: 3400
B
PIPING AND INSTRUMENTATION DIAGRAM
FLOTATION
3400-25J-051
RECLEANER FLOTATION
V
V
V
3" KG
R1A
SIZE:
C2-3410-BX-051
1ST RECLEANER CONCENTRATE PUMPBOX SIZE: 26" X 14"
MATERIAL:
MOTOR:
C2-3410-PP-171
1ST RECLEANER CONCENTRATE PUMP NO.1
SIZE:
C2-3410-LA-508
2ND RECLEANER CONCENTRATE LAUNDER
3410-SL-1373-R1A-20"-N
3410-SL-1370-R1A-28"-N
3410-WG-1068-C1A-1-1/2"-N
3410-SL-1366-R1A-28"-N
3410-SL-1304-R1A-14"-N
V
V
V
V
V
V
V
V
3410-SL-1365-R1A-24"-N
D
4
F
B
A
3
2
1 5 6 8
E
7
C
REV.
APPROVED
CHK.
DES.
REV. DATE REVISION DESCRIPTION
CLIENT
LEAD ENGINEER
SCALE DRAWING NUMBER
CHECK DESIGN CHECK DRAWING
DESIGNED BY DRAWN BY
APPROVAL DATE
APPROVAL DATE
APPROVED
CHK.
DES.
REV. DATE REVISION DESCRIPTION REFERENCE DRAWING No.
1:100
0
1:200
5m
10m
0
5m
10m
15m
20m
1:500
10m
0
20m
30m
40m
50m
1:1000
0
100m
50m
1:20
0
0.5m
1m
1.5m
2m
0
1:25
0.5m
1m
1.5m
1:33
1/3
2.5m
2m
0
1m
2m
3m
0
1:50
1m
2m
3m
4m
5m
CAD FILE NAME: P:0CAD000SPEM**
MODEL UPDATED:
DWG. FILE UPDATED:
MANUAL CHANGES MADE: YES NO YES NO YES NO
PROJECT MANAGER
ENGINEERING MANAGER
AREA PROJECT ENGINEER
REFERENCE DRAWINGS
SAFETY SHARE:
APPROVAL DATE
CONTRACT
NO.
SAFETY SHARE :
BA6CVA1.IGR
NOTICE: THIS DRAWING HAS NOT BEEN PUBLISHED AND IS THE SOLE
PROPERTY OF FLUOR AND IS LENT TO THE BORROWER FOR THEIR
CONFIDENTIAL USE ONLY, AND IN CONSIDERATION OF THE LOAN OF THIS
DRAWING, THE BORROWER PROMISES AND AGREES TO RETURN IT UPON
REQUEST AND AGREES THAT IT WILL NOT BE REPRODUCED, COPIED LENT
OR OTHERWISE DISPOSED OF DIRECTLY OR INDIRECTLY, NOR USED FOR
ANY OTHER PURPOSE OTHER THAN WHICH IT IS FURNISHED.
NONE
Apr 2011
240K-C2-
SIZE: 160 m3
MOTOR:
C2-3410-CF-541
1ST RECLEANER CELL NO. 1
3410
05127
ZS
OP/CL
3410
05127
XA
MISMATCH
3410
05127
XV
+
26" PL
T3
3410
05124
FIT
3410
05192
HS
J/SP
3410
05124
FI
3410
05125
PI
L, P2
3410
05128
ZS
3410
05125
PIT
M
3410
05192
XA
3410
05192
II
3410
05126
PI
3410
05128
XA
AFD
TO FLOOR
L, P2
LL, P1
MIN
FAULT
BY
VENDOR
BY
VENDOR
MISMATCH
3"
C2-3410-PP-172
BA
3400
05128
XV
+
FI
1/2" BA
ES
1-1/2" PL
3410
05124
FE
+
SIZE: 26" X 14"
MATERIAL:
MOTOR:
C2-3410-PP-172
1ST RECLEANER CONCENTRATE PUMP NO.2
3400-SL- -R1A-26"-N
3410-WG- -C1A-1-1/2"-N
D
4
F
B
A
3
2
1 5 6 8
E
7
C
REV.
APPROVED
CHK.
DES.
REV. DATE REVISION DESCRIPTION
CLIENT
LEAD ENGINEER
SCALE DRAWING NUMBER
CHECK DESIGN CHECK DRAWING
DESIGNED BY DRAWN BY
APPROVAL DATE
APPROVAL DATE
APPROVED
CHK.
DES.
REV. DATE REVISION DESCRIPTION REFERENCE DRAWING No.
1:100
0
1:200
5m
10m
0
5m
10m
15m
20m
1:500
10m
0
20m
30m
40m
50m
1:1000
0
100m
50m
1:20
0
0.5m
1m
1.5m
2m
0
1:25
0.5m
1m
1.5m
1:33
1/3
2.5m
2m
0
1m
2m
3m
0
1:50
1m
2m
3m
4m
5m
CAD FILE NAME: P:0CAD000SPEM**
MODEL UPDATED:
DWG. FILE UPDATED:
MANUAL CHANGES MADE: YES NO YES NO YES NO
PROJECT MANAGER
ENGINEERING MANAGER
AREA PROJECT ENGINEER
REFERENCE DRAWINGS
SAFETY SHARE:
APPROVAL DATE
CONTRACT
NO.
SAFETY SHARE :
BA6CVA1.IGR
NOTICE: THIS DRAWING HAS NOT BEEN PUBLISHED AND IS THE SOLE
PROPERTY OF FLUOR AND IS LENT TO THE BORROWER FOR THEIR
CONFIDENTIAL USE ONLY, AND IN CONSIDERATION OF THE LOAN OF THIS
DRAWING, THE BORROWER PROMISES AND AGREES TO RETURN IT UPON
REQUEST AND AGREES THAT IT WILL NOT BE REPRODUCED, COPIED LENT
OR OTHERWISE DISPOSED OF DIRECTLY OR INDIRECTLY, NOR USED FOR
ANY OTHER PURPOSE OTHER THAN WHICH IT IS FURNISHED.
NONE
Apr 2011
240K-C2-
C2-3430-SA-537
C2-3430-SA-532
C2-3430-SA-530
2"x1/2"
C2-3430-AZ-509
V
NOTE 1 NOTE 1
FLUOR
VENDOR
NOTE 1
V
V
V
V
V
V
2"x1"
2"x1"
2"x1"
NOTE 1 NOTE 1
NOTE 1 NOTE 1
NOTE 1
C2-3410-SA-535
C2-3410-SA-533
V V
V
V
2"x1"
2"x1"
SIZE:
C2-3430-SA-530
1ST CLEANER CONC. SAMPLER NO. 1
SIZE:
C2-3430-SA-532
CLEANER SCAVENGER CONCENTRATE SAMPLER NO. 1
SIZE:
C2-3430-SA-537
RECLEANER CONCENTRATE SAMPLER
SIZE:
C2-3430-AZ-509
CLEANER SCAVENGER/1ST CLEANER IN-STREAM ANALYZER
SIZE:
C2-3410-SA-533
1ST CLEANER CONC. SAMPLER NO. 2
SIZE:
C2-3410-SA-535
CLEANER SCAVENGER CONCENTRATE SAMPLER NO. 2
1ST CLEANER CONC.
1ST CLEANER CONCENTRATE
LAUNDER NO. 1,
2720 3400-25J-047
CLEANER SCAV. CONC.
CLEANER SCAVENGER
CONCENTRATE LAUNDER NO.
2721 3400-25J-048
RECLEANER CONCENTRATE
2ND RECLEANER
CONCENTRATE LAUNDER,
2722 3400-25J-051
RECLEANER TAILING
RECLEANER TAILING
SAMPLER,C2-3410-SA-536
2723 3400-25J-051
PROCESS WATER
2724 3900-25J-016
RECLEANER CONCENTRATE
COLUMN CONCENTRATE
PUMPBOX, C2-3420-BX-512
2726
3400-25J-041
CLEANER SCAV. CONC.
SCAVENGER CONCENTRATE
COLLECTION PUMPBOX,
2727
3400-25J-026
1ST CLEANER CONC.
COLUMN CELL FEED
PUMPBOX, C2-3420-BX-503
2728
3400-25J-025
CLEANER SCAV. CONC.
SCAVENGER CONCENTRATE
COLLECTION PUMPBOX,
2729
3400-25J-026
RECELANER TAILING
ROUGHER CONCENTRATE
PUMPBOX, C2-3420-BX-502
2730 3400-25J-022
1ST CLEANER CONC.
COLUMN CELL FEED
PUMPBOX, C2-3420-BX-503
2731 3400-25J-025
CLEANER SCAV. TAILING
TAILING COLLECTION
LAUNDER NO.1,
2732 3700-25J-001
CLEANER SCAV. TAILING
TAILING COLLECTION
LAUNDER NO.1,
2733 3700-25J-001
CLEANER SCAV. TAILING
CLEANER SCAVENGER
TAILING SAMPLER NO.2,
2734
3400-25J-048
CLEANER SCAV. TAILING
CLEANER SCAVENGER
TAILING SAMPLER NO. 1,
2735
3400-25J-048
1ST CLEANER CONC.
1ST CLEANER CONCENTRATE
BYPASS LAUNDER NO. 2,
2736
3400-25J-047
CLEANER SCAV. CONC.
CLEANER SCAV. CONC. NO. 2,
C2-3410-LA-515
2737
3400-25J-048
1ST CLEANER CONC.
COLUMN CELL FEED
PUMPBOX, C2-3420-BX-503
2738 3400-25J-025
CLEANER SCAV. CONC.
SCAVENGER CONCENTRATE
COLLECTION PUMPBOX,
2739 3400-25J-026
1ST CLEANER CONC.
COLUMN CELL FEED
PUMPBOX, C2-3420-BX-503
2740 3400-25J-025
CLEANER SCAV. CONC.
SCAVENGER CONCENTRATE
COLLECTION PUMPBOX,
2741 3400-25J-026
RECLEANER CONCENTRATE
COLUMN CONCENTRATE
PUMPBOX, C2-3420-BX-512
2742 3400-25J-041
PROCESS WATER
2743
3900-25J-014
C2-3420-BX-504
C2-3420-BX-504
C2-3410-SA-534
C2-3420-BX-504
C2-3420-BX-504
3430-WF-1176-C1A-2"-N
3410-SL-1378-R1A-12"-N
3410-SL-1377-R1A-12"-N
3410-SL-1376-R1A-12"-N
3410-SL-1384-R1A-12"-N
3410-SL-1381-R1A-12"-N
3410-SL-1372-R1A-4"-N
3410-SL- -R1A-4"-N
3410-SL- -R1A-4"-N
3410-SL-1385-R1A-4"-N
3410-SL-1386-R1A-4"-N
3410-SL-1387-R1A-6"-N
3410-SL-1388-R1A-6"-N
3410-SL-1389-R1A-6"-N
3410-SL-1390-R1A-6"-N
3410-SL-1391-R1A-6"-N
3410-SL-1392-R1A-6"-N
3410-SL-1393-R1A-6"-N
3410-SL-1394-R1A-6"-N
3410-SL- -R1A-4"-N
3410-SL- -R1A-4"-N
3410-SL-1379-R1A-12"-N
3430-WR-1271-C1A-2"-N
3430-SL-1370-R1A-12"-N
3430-SL-1375-R1A-12"-N
3430-SL-1374-R1A-12"-N
ES
3430-WR-1795-C1A-1"-N
3430-WR-1796-C1A-1"-N 3410-WR-1798-C1A-1"-N
3410-SL-1382-R1A-12"-N
3410-WR-1797-C1A-2"-N
AG
KM
LT
ISSUED FOR CLIENT REVIEW
22-Dec-11
B
RP
ISSUED FOR COMBINED REVIEW
29-Jun-11
A
12/22/2011
K. MUNDY
A. GUNSON
W. BIE
L. TAMELIN
12/22/2011
2:39:15
PM
WBS: 3400
B
PIPING AND INSTRUMENTATION DIAGRAM
FLOTATION
3400-25J-053
CLEANER FLOTATION SAMPLING
FRESH WATER
3101
C2-3410-LA-508
1 C2-3410-LA-512
C2-3410-LA-511
C2-3410-LA-514
C2-3410-SA-531
C2-3710-LA-001
C2-3710-LA-001
NOTES:
1. PROVISION TO BE MADE FOR COMPOSITE SAMPLE
T3
T3
AFD
T8
3510
00101
DE
3510
00101
PIC
3510
00114
FI
MIN
3510
00101
WQI
3510
00183
XA
3510
00102
LE
3510
00184
II
3510
00102
LIT
3510
00185
XA
3510
00101
DIT
3510
00101
FIC
3510
00104
FI
3510
00101
PT
3510
00185
HS
3510
00182
XA
3510
00115
PI
3510
00115
PIT
3510
00183
II
3510
00127
LE
3510
00104
FIT
3510
00181
XA
3510
00117
ZS
OP/CL
3510
00117
XA
3510
00107
ZS
OP/CL
3510
00107
XA
3510
00106
ZS
OP/CL
3510
00106
XA
3510
00108
XA
3510
00108
ZS
OP/CL
3510
00116
ZS
OP/CL
3510
00184
XA
3510
00101
DIC
3510
00182
II
FAULT
3510
00101
WY
3510
00127
LI
3510
00101
FIT
3510
00113
PI
3510
00114
FIT
/
3"
3510
00181
II
HH, P1
H, P2
M
3510
00127
LIT
3510
00105
PI
3510
00183
HS
3510
00110
ZI
3510
00112
ZS
3510
00112
XA
3510
00182
HS
3510
00101
DX
3510
00102
LI
3510
00111
OI
MIN
3510
00184
HS
M
M
3510
00181
HS
J/SP
3510
00185
II FAULT
3510
00105
PIT
3510
00116
XA
3510
00109
ZS
OP/CL
3510
00118
ZS
OP/CL
3510
00118
XA
3510
00109
XA
3510
00119
ZS
OP/CL
3510
00119
XA
3510
00124
ZS
OP/CL
3510
00123
ZS
OP/CL
3510
00122
ZS
OP/CL
3510
00123
XA
3510
00122
XA
3510
00124
XA
3510
00126
ZS
OP/CL
3510
00125
ZS
OP/CL
3510
00126
XA
3510
00125
XA
DRAIN TO
FLOOR
TO
FLOOR
SUMP
CU-MO THICKENER O/F
CU CONC. THICKENER O/F
TANK C2-3610-TK-005
1081 3600-25J-002
MO FLOT.AREA SUMP CONT.
MO FLOTATION AREA SUMP
PUMP, C2-3520-PP-608
1862 3500-25J-003
NAHS AREA SUMP CONT.
NAHS AREA SUMP PUMP,
C2-3510-PP-165
1861 3500-25J-035
MO 1ST CLEANER TAILING
MO 1ST CLEANER TAILING
PUMPS, C2-3520-PP-609/610
1854 3500-25J-011
COLUMN CONC.
COLUMN CONC. TRANSFER
PUMPS, C2-3430-PP-514/515
1860 3400-25J-041
MO ROUGHER SCAV. CONC.
ROUGHER SCAV. CONC.
PUMPS, C2-3520-PP-605/606
1855 3500-25J-005
CU-MO THICKENER U/F
MO ROUGHER FEED
SAMPLER, C2-3510-SA-611
1843 3500-25J-002
MIN
MIN
TO FLOOR
SLOPE
TORQUE
SELECT
MIN
OP/CL
TO FLOOR
MIN
MIN.
MIN
MIN.
SLOPE
MIN
L, P2
LL, P1
MIN
3"
MIN
LIFT POSITION
J/SP
H, P2
RECYCLE
(J) JF/JR
SP
J/SP
H, P2
HH, P1
L, P2
L, P2
LL,P1
MASS FLOW
J/SP
L, P2
VENDOR SUPPLY
L, P2
MIN
FAULT
FAULT
FAULT
1-1/2"
FI
FI
AG
KM
LT
ISSUED FOR CLIENT REVIEW
22-Dec-11
B
RP
ISSUED FOR COMBINED REVIEW
30-Jun-11
A
12/22/2011
K. MUNDY
A. GUNSON
A. REGNAULT
L. TAMELIN
12/22/2011
2:08:56
PM
WBS: 3510
B
PIPING AND INSTRUMENTATION DIAGRAM
MOLY PLANT
3500-25J-001
CU-MO CONCENTRATE THICKENER
2"x1"
C2-3510-TK-002
3510
00109
XV
+
NC
SIZE:
MATERIAL:
MOTOR:
C2-3510-PP-053
CU-MO CONCENTRATE THICKENER AREA SUMP PUMP
FI
3510
00107
XV
+
3510
00124
XV
+
FI
C2-3510-BX-003
3510
00119
XV
+
4"
1-1/2"x1"
C2-3510-PP-056
1-1/2"x1"
C2-3510-PP-055
FI
3510
00118
XV
+
FI
FI
3510
00108
XV
+
3510
00117
XV
+
3510
00114
FE
+
6"
16"x14"
FI
1-1/2"x1"
3510
00116
XV
+
C2-3510-TM-002
3510
00122
XV
+
3510
00112
XV
+
1"x1/2"
1-1/2"
1-1/2"
FI
FI
3510
00104
FE
+
1-1/2"
FI
3510
00123
XV
+
1-1/2"
1-1/2"
1-1/2"
3510
00125
XV
+
FI
3510
00126
XV
+
16"x14"
1-1/2"x1"
FI
3510
00101
FE
+
1"x1/2"
C2-3510-PP-053
3510
00106
XV
+
ES
ES
3510-SL-1399-R1A-10"-N
ES
3510-SL-1400-R1A-10"-N
3510-SL-1792-C1B-4"-N
3510-SL-1795-R1A-14"-N
3510-SL-1398-R1A-10"-N
3510-SL-1398-R1A-10"-N
SIZE:
MATERIAL:
MOTOR:
C2-3510-PP-056
CU-MO CONCENTRATE THICKENER UNDERFLOW PUMP NO. 2
SIZE: 45 m DIA
MATERIAL:
MOTOR:
C2-3510-TM-002
CU-MO CONCENTRATE THICKENER MECHANISM
3510-WG-1037-C1A-2"-N
3510-SL-1401-R1A-10"-N
3510-SL-1793-C1B-30"-N
ES
3510-SL-1450-R1A-6"-N
3510-WR-1799-C1A-18"-N
R1A
3510-WR-1803-C1A-4"-N
3510-SL-1310-R1A-28"-N
3510-SL-1428-R1A-8"-N
3510-WR-1333-C1A-4"-N
SIZE:45 mDIA
C2-3510-TK-002
CU-MO CONCENTRATE THICKENER
3510-WR-1802-C1A-4"-N
3510-SL-1796-R1A-14"-N
R1A
SIZE:
MATERIAL:
MOTOR:
C2-3510-PP-055
CU-MO CONCENTRATE THICKENER UNDERFLOW PUMP NO. 1
C1A
ES
3510-WG-1706-C1A-1"-N
3510-SL-1409-C1B-4"-N
C1A
SIZE:
MATERIAL:
CAPACITY:
TRIM:C1B
C2-3510-BX-003
CU-MO CONCENTRATE THICKENER FEED BOX
3510-SL-1794-R1A-6"-N
3510-WR-1914-C1A-8"-N
3510-RS-1038-S1B-3"-N
D
4
F
B
A
3
2
1 5 6 8
E
7
C
REV.
APPROVED
CHK.
DES.
REV. DATE REVISION DESCRIPTION
CLIENT
LEAD ENGINEER
SCALE DRAWING NUMBER
CHECK DESIGN CHECK DRAWING
DESIGNED BY DRAWN BY
APPROVAL DATE
APPROVAL DATE
APPROVED
CHK.
DES.
REV. DATE REVISION DESCRIPTION REFERENCE DRAWING No.
1:100
0
1:200
5m
10m
0
5m
10m
15m
20m
1:500
10m
0
20m
30m
40m
50m
1:1000
0
100m
50m
1:20
0
0.5m
1m
1.5m
2m
0
1:25
0.5m
1m
1.5m
1:33
1/3
2.5m
2m
0
1m
2m
3m
0
1:50
1m
2m
3m
4m
5m
CAD FILE NAME: P:0CAD000SPEM**
MODEL UPDATED:
DWG. FILE UPDATED:
MANUAL CHANGES MADE: YES NO YES NO YES NO
PROJECT MANAGER
ENGINEERING MANAGER
AREA PROJECTENGINEER
REFERENCE DRAWINGS
SAFETY SHARE:
APPROVAL DATE
CONTRACT
NO.
SAFETY SHARE :
BA6CVA1.IGR
NOTICE: THIS DRAWING HAS NOT BEEN PUBLISHED AND IS THE SOLE
PROPERTY OF FLUOR AND IS LENT TO THE BORROWER FOR THEIR
CONFIDENTIAL USE ONLY, AND IN CONSIDERATION OF THE LOAN OF THIS
DRAWING, THE BORROWER PROMISES AND AGREES TO RETURN IT UPON
REQUEST AND AGREES THAT IT WILL NOT BE REPRODUCED, COPIED LENT
OR OTHERWISE DISPOSED OF DIRECTLY OR INDIRECTLY, NOR USED FOR
ANY OTHER PURPOSE OTHER THAN WHICH IT IS FURNISHED.
NONE 240K-C2-
CLARIFIER O/F
CONC. CLARIFIER O/F PUMPS,
C2-3610-PP-008/009
2548 3600-25J-004
CLARIFIER U/F
CONC. CLARIFIER U/F PUMPS,
C2-3610-PP-006/007
2589 3600-25J-004
3610-SL-1604-C1B-2"-N
GLAND SEAL WATER
2965 3900-25J-023
C2-3430-SA-526
CU-MO THICKENER FEED
CU CONCENTRATE
THICKENER FEED BOX,
3311 3600-25J-001
C2-3610-BX-001
CU-MO THICKENER U/F
SAFETY SCREEN FEED BOX,
C2-3610-BX-041
3313 3600-25J-005
SIZE:
C2-3430-SA-526
COMBINED COLUMN CONCENTRATE SAMPLER
NOTE:
1. PROVISION FOR AUTOMATED SHIFT
SAMPLES
NOTE 1
MISMATCH
MISMATCH
MISMATCH
MISMATCH
MISMATCH
MISMATCH
MISMATCH
V
3510
00101
HY
RSP
MISMATCH
MISMATCH
MISMATCH
MISMATCH
CU-MO THICKENER FEED
3610-BX-006
3758 3600-25J-003
3510-SL-1590-R1A-30"-N
3510-SL-1820-R1A-4"-N
3510-WR-1801-C1A-4"-N
3510-WR-1290-C1A-4"-N
AFD
PROCESS WATER
2926 3900-25J-016
CU-MO THICKENER U/F
SAFETY SCREEN FEED BOX,
C2-3620-BX-041
4220 3600-25J-005
3510-SL- - - -
T1
H2S
3510
00281
HS
J/SP
3510
00281
XA
3510
00203
AE
3510
00202
AI
3510
00202
AE
PH
3510
00203
AI
3510
00202
AIT
3510
00203
AIT
H, P2
3510
00281
II
SPENT PROCESS GAS
EQUALIZATION HEADER
2115 3500-25J-003
CU-MO THICKENER U/F
CU-MO CONCENTRATE
THICKENER U/F PUMPS,
1843 3500-25J-001
CU-MO THICKENER U/F
MO ROUGHER ANALYZER,
C2-3520-AZ-601
1881 3500-25J-006
CU-MO THICK. U/F
MO ROUGHER FLOTATION
CELLS
1845 3500-25J-003
VENDOR
H, P2
L, P2
SLOPE
FLUOR FAULT
AG
KM
LT
ISSUED FOR CLIENT REVIEW
22-Dec-11
B
RP
ISSUED FOR COMBINED REVIEW
30-Jun-11
A
12/22/2011
K. MUNDY
A. GUNSON
A. REGNAULT
L. TAMELIN
12/22/2011
2:09:29
PM
WBS: 3510
B
PIPING AND INSTRUMENTATION DIAGRAM
MOLY PLANT
3500-25J-002
MO CONDITIONING AND SAMPLING
SIZE:
MATERIAL:
CAPACITY:
TRIM:
C2-3510-TK-601
MO CONDITIONING TANK
C2-3510-AG-601
14"x10"
C2-3510-TK-601
3510-WR-1290-C1A-4"-N
3510-SL-1402-R1A-14"-N
3510-RS-1055-S1B-1"-N
SIZE:
MATERIAL:
MOTOR:
C2-3510-AG-601
MO CONDITIONING TANK AGITATOR
ES
3510-SL-1404-R1A-14"-N
3510-SL-1398-R1A-10"-N
3510-PG-1004-C1A-10"-N
3510-SL-1403-R1A-3"-N
3510-PG-1003-C1A-4"-N
C2-3510-SA-611
D
4
F
B
A
3
2
1 5 6 8
E
7
C
REV.
APPROVED
CHK.
DES.
REV. DATE REVISION DESCRIPTION
CLIENT
LEAD ENGINEER
SCALE DRAWING NUMBER
CHECK DESIGN CHECK DRAWING
DESIGNED BY DRAWN BY
APPROVAL DATE
APPROVAL DATE
APPROVED
CHK.
DES.
REV. DATE REVISION DESCRIPTION REFERENCE DRAWING No.
1:100
0
1:200
5m
10m
0
5m
10m
15m
20m
1:500
10m
0
20m
30m
40m
50m
1:1000
0
100m
50m
1:20
0
0.5m
1m
1.5m
2m
0
1:25
0.5m
1m
1.5m
1:33
1/3
2.5m
2m
0
1m
2m
3m
0
1:50
1m
2m
3m
4m
5m
CAD FILE NAME: P:0CAD000SPEM**
MODEL UPDATED:
DWG. FILE UPDATED:
MANUAL CHANGES MADE: YES NO YES NO YES NO
PROJECT MANAGER
ENGINEERING MANAGER
AREA PROJECTENGINEER
REFERENCE DRAWINGS
SAFETY SHARE:
APPROVAL DATE
CONTRACT
NO.
SAFETY SHARE :
BA6CVA1.IGR
NOTICE: THIS DRAWING HAS NOT BEEN PUBLISHED AND IS THE SOLE
PROPERTY OF FLUOR AND IS LENT TO THE BORROWER FOR THEIR
CONFIDENTIAL USE ONLY, AND IN CONSIDERATION OF THE LOAN OF THIS
DRAWING, THE BORROWER PROMISES AND AGREES TO RETURN IT UPON
REQUEST AND AGREES THAT IT WILL NOT BE REPRODUCED, COPIED LENT
OR OTHERWISE DISPOSED OF DIRECTLY OR INDIRECTLY, NOR USED FOR
ANY OTHER PURPOSE OTHER THAN WHICH IT IS FURNISHED.
NONE
Apr 2011
240K-C2-
PROCESS WATER
3312 3900-25J-016
C02 GAS
CO2 VAPORIZER,
C2-3510-ZM-527
3316 3500-25J-036
NAHS SOLUTION
NASH INJECTOR NO. 1,
C2-3540-ZM-663
3554 3500-25J-037
3510-PG-1001-CIA-2"-N
C2-3510-PP-005/056
SIZE:
C2-3510-SA-611
MO ROUGHER FEED SAMPLER
T8
T1
T1
T1
VENDOR
3510
00383
II
3510
00381
HS
3510
00301
LE
3510
00311
LIC
3510
00302
LT
3510
00382
XA FAULT
3510
00317
LIT
3510
00316
PI
3510
00388
XA
3510
00382
II
3510
00314
FIC
3510
00312
LT
3510
00311
LIT
3510
00317
LI
3510
00382
HS
3510
00381
XA FAULT
3510
00304
FIT
3510
00317
LE
3510
00302
LE
3510
00312
LI
3510
00301
LIC
3510
00304
FIC
3510
00315
AE
3510
00301
LIT
3510
00313
AIT
PH
3510
00381
II
3510
00315
AI
3510
00388
II
3510
00314
FIT
3510
00313
AI
3510
00315
AIT
3510
00383
XA FAULT
3510
00312
LE
3510
00313
AE
3510
00311
LE
3510
00383
HS
3510
00302
LI
3510
00388
HS
VENDOR
MIN.
MIN.
NITROGEN
NITROGEN VAPORIZER,
C2-3510-ZM-528
1864 3500-25J-041
SPENT PROCESS GAS
EQUALIZATION HEADER
1065 3500-25J-004
CONDITIONED CU-MO
MO CONDITIONING TANK,
C2-3510-TK-601
1845 3500-25J-002
MO FLOT.AREA SUMP CONT.
CU-MO THICKENER FEED
BOX, C2-3510-BX-003
1862 3500-25J-001
MO ROUGHER CONC.
LAUNDER CONTINUE,
C2-3510-LA-600
1852 3500-25J-004
MO ROUG. CELL NO.3 TAIL.
MO ROUGHER FLOTATION
CELL NO.4, C2-3510-CF-704
1069 3500-25J-004
SPENT PROCESS GAS
MO CONDITIONING TANK,
C2-3510-TK-601
2115 3500-25J-002
MO ROUG. CELL NO.3 TAIL.
MO ROUGHER FLOTATION
CELL NO.4, C2-3510-CF-704
1068 3500-25J-004
H, P2
HH. P1
L, P2
H, P2
L, P2
VENDOR
VENDOR
J/SP
J/SP
VENDOR
VENDOR
J/SP
VENDOR
VENDOR
J/SP
3510-WR-1804-C1A-4"-N
C2-3510-CF-701
AG
KM
LT
ISSUED FOR CLIENT REVIEW
22-Dec-11
B
RP
ISSUED FOR COMBINED REVIEW
30-Jun-11
A
12/22/2011
K. MUNDY
A. GUNSON
A. REGNAULT
L. TAMELIN
12/22/2011
12:19:07
PM
WBS: 3510
B
PIPING AND INSTRUMENTATION DIAGRAM
MOLY PLANT
3500-25J-003
MO ROUGHER FLOTATION CELLS 1 TO 3
SIZE:
C2-3510-CF-703
MO ROUGHER FLOTATION CELL NO.3
2"x1-1/2"
2"x1"
2"x1"
3510
00314
FV
+
3510
00311 B
LV
+
3510-N2G-1002-C1D-2"-N
C2-3510-CF-703
3510-PG-1004-C1D-10"-N
SIZE:
C2-3510-CF-702
MO ROUGHER FLOTATION CELL NO.2
12"
C2-3510-LA-600
SIZE:
C2-3510-LA-600
MO ROUGHER FLOTATION LAUNDER
3510-SL-1409-C1B-6"-N
3510
00311 A
LV
+
2"x1-1/2"
3510
00314
FE
+
1"x1/2"
2"x1-1/2"
3510-WR-1805-C1A-2"-N
SIZE:
C2-3510-CF-701
MO ROUGHER FLOTATION CELL NO.1
3510
00301 A
LV
+
3510
00301 B
LV
+
C2-3510-CF-702
3510-SL-1404-R1A-14"-N
3510-WR-1809-C1A-1"-N
2"x1"
3510-WR-1806-C1A-1"-N
2"x1-1/2"
3510
00304
FE
+
3510-PG-1004-C1D-10"-N
3510-WR-1807-C1A-2"-N
1"x1/2"
3510-WR-1804-C1A-4"-N
12"
3510-WR-1808-C1A-2"-N
SIZE:
MATERIAL:
MOTOR:
C2-3510-PP-608
MO FLOTATION AREA SUMP PUMP
C2-3510-PP-608
3510
00304
FV
+
3510-PG-1005-C1A-6"-N
12"
3510-N2G-1017-C1D-2"-N
3510-PG-1006-C1A-6"-N
D
4
F
B
A
3
2
1 5 6 8
E
7
C
REV.
APPROVED
CHK.
DES.
REV. DATE REVISION DESCRIPTION
CLIENT
LEAD ENGINEER
SCALE DRAWING NUMBER
CHECK DESIGN CHECK DRAWING
DESIGNED BY DRAWN BY
APPROVAL DATE
APPROVAL DATE
APPROVED
CHK.
DES.
REV. DATE REVISION DESCRIPTION REFERENCE DRAWING No.
1:100
0
1:200
5m
10m
0
5m
10m
15m
20m
1:500
10m
0
20m
30m
40m
50m
1:1000
0
100m
50m
1:20
0
0.5m
1m
1.5m
2m
0
1:25
0.5m
1m
1.5m
1:33
1/3
2.5m
2m
0
1m
2m
3m
0
1:50
1m
2m
3m
4m
5m
CAD FILE NAME: P:0CAD000SPEM**
MODEL UPDATED:
DWG. FILE UPDATED:
MANUAL CHANGES MADE: YES NO YES NO YES NO
PROJECT MANAGER
ENGINEERING MANAGER
AREA PROJECTENGINEER
REFERENCE DRAWINGS
SAFETY SHARE:
APPROVAL DATE
CONTRACT
NO.
SAFETY SHARE :
BA6CVA1.IGR
NOTICE: THIS DRAWING HAS NOT BEEN PUBLISHED AND IS THE SOLE
PROPERTY OF FLUOR AND IS LENT TO THE BORROWER FOR THEIR
CONFIDENTIAL USE ONLY, AND IN CONSIDERATION OF THE LOAN OF THIS
DRAWING, THE BORROWER PROMISES AND AGREES TO RETURN IT UPON
REQUEST AND AGREES THAT IT WILL NOT BE REPRODUCED, COPIED LENT
OR OTHERWISE DISPOSED OF DIRECTLY OR INDIRECTLY, NOR USED FOR
ANY OTHER PURPOSE OTHER THAN WHICH IT IS FURNISHED.
NONE
Apr 2011
240K-C2-
FAULT
PROCESS WATER
2114 3900-25J-016
FC
FC
ORP
V
V
V
V
H, P2
L, P2
NAHS SOLUTION
NAHS INJECTOR NO.4,
C2-3510-ZM-630
3552 3500-25J-037
THICKENED U/F
3510-SL-1447-R1A-6"-N
3510-SL-1446-R1A-6"-N
3510-SL-1408-R1A-14"-N
3510-SL-1407-R1A-14"-N
PROCESS WATER
1066
3510-RC-1056-C1D-1"-N
3510-SL-1424-R1A-6"-N
3510-SL-1425-R1A-6"-N
3510-SL-1406-R1A-14"-N
3510-RC-1166-C1D-1"-N
DEFOAMER
INJECTOR, C2-3510-ZM-646
3587 3500-25J-033
T3
T3
T1
T1
NOTE 1
VENDOR
3510
00420
DX
3510
00481
XA FAULT
3510
00403
AI
3510
00420
FI
3510
00401
LIT
3510
00403
AIT
3510
00485
II
3510
00486
II
3510
00486
XA
3510
00411
FIC
M
3510
00403
AE
3510
00485
HS
J/SP
3510
00410
LIT
3510
00413
PI
3510
00405
PIT
3510
00486
HS
J/SP
3510
00481
HS
3510
00482
HS
3510
00414
FIT
3510
00420
DE
3510
00404
FIT
3510
00402
LE
3510
00420
FY
3510
00410
LIC
H, P2
L, P2
LL, P2
3510
00482
XA FAULT
3510
00402
LI
3510
00410
LE
M
3510
00411
FIT
3510
00420
FIT
M
3510
00485
XA
3510
00409
ZS
3510
00409
XA
3510
00481
II
3510
00414
FI
3510
00419
XA
3510
00420
DIT
3510
00419
ZS
3510
00404
FI
L
3510
00420
DI
3510
00402
LT
3510
00482
II
3510
00401
LIC
3510
00420
WQI
MASS
FLOW
3510
00415
PI
L, P2
3510
00418
XA
3510
00401
LE
3510
00418
ZS
3510
00417
XA
3510
00407
XA
3510
00407
ZS
3510
00417
ZS
3510
00405
PI
L, P2
3510
00415
PIT
3510
00408
XA
3510
00408
ZS
MIN.
OP/CL
GLAND SEAL WATER
3314 3900-25J-023
MO ROUGHER CONC.
LAUNDER CONTINUE,
C2-3510-LA-600
1852 3500-25J-003
MO ROUGHER TAILING
MO ROUGHER SCAVENGER
FLOTATION CELL NO.6,
1871 3500-25J-005
MO ROUGHER
MO ROUGHER CONCENTRATE
SAMPLER, C2-3510-SA-612
1858 3500-25J-006
MO ROUGHER TAILING
MO ROUGHER FLOTATION
CELL NO.3, C2-3510-CF-703
1069 3500-25J-003
MO ROUGHER TAILING
MO ROUGHER FLOTATION
CELL NO.3, C2-3510-CF-703
1068 3500-25J-003
MO ROUGHER CONC.
MO ROUGHER ANALYZER,
C2-3510-AZ-601
1878 3500-25J-006
NITROGEN
NITROGEN VAPORIZER,
C2-3510-ZM-528
1849 3500-25J-041
PROCESS WATER
1064
MO ROUGHER TAILING
MO ROUGHER SCAVENGER
FLOTATION CELL NO.6,
1062 3500-25J-005
SPENT PROCESS GAS
EQUALIZATION HEADER
1065 3500-25J-003
SPENT PROCESS GAS
EQUALIZATION HEADER
1868 3500-25J-005
CONCENTRATE
J/SP
H, P2
L, P2
L, P2
LL, P1
MIN.
NOTE 1
AFD
ORP
NOTES:
1. MINIMUM DISTANCE TO BE MAINTAINED BETWEEN VALVE AND FITTINGS OR FLANGES.
VENDOR
VENDOR
ORP
L, P2
LL, P1
MIN.
AFD
VENDOR
J/SP
VENDOR
C2-3510-CF-706
C2-3510-CF-706
VENDOR
OP/CL
OP/CL
FAULT
FAULT
OP/CL
OP/CL
OP/CL
AG
KM
LT
ISSUED FOR CLIENT REVIEW
22-Dec-11
B
RP
ISSUED FOR COMBINED REVIEW
30-Jun-11
A
12/22/2011
K. MUNDY
A. GUNSON
A. REGNAULT
L. TAMELIN
12/22/2011
11:50:11
AM
WBS: 3510
B
PIPING AND INSTRUMENTATION DIAGRAM
MOLY PLANT
3500-25J-004
MO ROUGHER FLOTATION CELLS 4 TO 5
12"x6"
FC
FI
FI
3510
00409
XV
+
FI
2"x1-1/4"
3510
00401 A
LV
+
C2-3510-PP-602
FI
FI
V
V
C2-3510-PP-600
3"x2"
3"x1"
3510
00420
FE
+
1-1/2"x1"
2"x1"
12"x6"
V1
12"
1"x1/2"
3510
00419
XV
+
2"x1"
3510
00401 B
LV
+
C2-3510-BX-600
3510
00411
FV
+
3"x2"
3510
00404
FE
+
V1
3510
00408
XV
+
V1
3"x1"
3510
00411
FE
+
12"
3510
00407
XV
+
1"x1-1/4"
3510
00418
XV
+
FI
3510
00414
FE
+
V1
V1
C2-3510-CF-704 C2-3510-CF-705
3510
00417
XV
+
3510-WR-1804-C1A-4"-N
3510-SL-1418-R1A-12"-N
SIZE:
MATERIAL:
CAPACITY:
TRIM:
C2-3510-BX-600
MO ROUGHER CONCENTRATE PUMPBOX
3510-WR-1813-C1A-1"-N
SIZE:
C2-3510-CF-704
MO ROUGHER FLOTATION CELL NO.4
SIZE:
C2-3510-CF-705
MO ROUGHER FLOTATION CELL NO.5
3510-SL-1416-R1A-16"-N
3510-SL-1415-R1A-16"-N
3510-WG-1038-C1A-2"-N
3510-PG-1008-C1A-4"-N
3510-WG-1077-C1A-1"-N
3510-WR-1812-C1A-2"-N
3510-WR-1810-C1A-2"-N
2"x1"
3510-SL-1412-R1A-16"-N
SIZE:
MATERIAL:
MOTOR:
C2-3510-PP-602
MO ROUGHER CONCENTRATE PUMP NO. 2
ES
3510-WR-1804-C1A-4"-N
ES
3510-SL-1417-R1A-12"-N
3510-PG-1004-C1A-10"-N
SIZE:
C2-3510-LA-600
MO ROUGHER FLOTATION LAUNDER
3510-PG-1007-C1A-6"-N
3510-WR-1811-C1A-3"-N
V1
C2-3510-LA-600
ES
3510-SL-1433-R1A-3"-N
ES
ES
3510-N2G-1003-C1D-1-1/2"-N
ES
1-1/2"x1"
SIZE:
MATERIAL:
MOTOR:
C2-3510-PP-600
MO ROUGHER CONCENTRATE PUMP NO. 1
3510-PG-1004-C1A-10"-N
D
4
F
B
A
3
2
1 5 6 8
E
7
C
REV.
APPROVED
CHK.
DES.
REV. DATE REVISION DESCRIPTION
CLIENT
LEAD ENGINEER
SCALE DRAWING NUMBER
CHECK DESIGN CHECK DRAWING
DESIGNED BY DRAWN BY
APPROVAL DATE
APPROVAL DATE
APPROVED
CHK.
DES.
REV. DATE REVISION DESCRIPTION REFERENCE DRAWING No.
1:100
0
1:200
5m
10m
0
5m
10m
15m
20m
1:500
10m
0
20m
30m
40m
50m
1:1000
0
100m
50m
1:20
0
0.5m
1m
1.5m
2m
0
1:25
0.5m
1m
1.5m
1:33
1/3
2.5m
2m
0
1m
2m
3m
0
1:50
1m
2m
3m
4m
5m
CAD FILE NAME: P:0CAD000SPEM**
MODEL UPDATED:
DWG. FILE UPDATED:
MANUAL CHANGES MADE: YES NO YES NO YES NO
PROJECT MANAGER
ENGINEERING MANAGER
AREA PROJECTENGINEER
REFERENCE DRAWINGS
SAFETY SHARE:
APPROVAL DATE
CONTRACT
NO.
SAFETY SHARE :
BA6CVA1.IGR
NOTICE: THIS DRAWING HAS NOT BEEN PUBLISHED AND IS THE SOLE
PROPERTY OF FLUOR AND IS LENT TO THE BORROWER FOR THEIR
CONFIDENTIAL USE ONLY, AND IN CONSIDERATION OF THE LOAN OF THIS
DRAWING, THE BORROWER PROMISES AND AGREES TO RETURN IT UPON
REQUEST AND AGREES THAT IT WILL NOT BE REPRODUCED, COPIED LENT
OR OTHERWISE DISPOSED OF DIRECTLY OR INDIRECTLY, NOR USED FOR
ANY OTHER PURPOSE OTHER THAN WHICH IT IS FURNISHED.
NONE
Apr 2011
240K-C2-
3510-SL-1411-R1A-14"-N
3510-SL-1410-R1A-14"-N
3510-SL-1460-R1A-6"-N
3510-SL-1461-R1A-6"-N
PROCESS WATER
4110 3900-25J-016
3510-WG-1038-C1A-2"-N
3510-SL-1470-R1A-6"-N
D
4
F
B
A
3
2
1 5 6 8
E
7
C
REV.
APPROVED
CHK.
DES.
REV. DATE REVISION DESCRIPTION
CLIENT
LEAD ENGINEER
SCALE DRAWING NUMBER
CHECK DESIGN CHECK DRAWING
DESIGNED BY DRAWN BY
APPROVAL DATE
APPROVAL DATE
APPROVED
CHK.
DES.
REV. DATE REVISION DESCRIPTION REFERENCE DRAWING No.
1:100
0
1:200
5m
10m
0
5m
10m
15m
20m
1:500
10m
0
20m
30m
40m
50m
1:1000
0
100m
50m
1:20
0
0.5m
1m
1.5m
2m
0
1:25
0.5m
1m
1.5m
1:33
1/3
2.5m
2m
0
1m
2m
3m
0
1:50
1m
2m
3m
4m
5m
CAD FILE NAME: P:0CAD000SPEM**
MODEL UPDATED:
DWG. FILE UPDATED:
MANUAL CHANGES MADE: YES NO YES NO YES NO
PROJECT MANAGER
ENGINEERING MANAGER
AREA PROJECTENGINEER
REFERENCE DRAWINGS
SAFETY SHARE:
APPROVAL DATE
CONTRACT
NO.
SAFETY SHARE :
BA6CVA1.IGR
NOTICE: THIS DRAWING HAS NOT BEEN PUBLISHED AND IS THE SOLE
PROPERTY OF FLUOR AND IS LENT TO THE BORROWER FOR THEIR
CONFIDENTIAL USE ONLY, AND IN CONSIDERATION OF THE LOAN OF THIS
DRAWING, THE BORROWER PROMISES AND AGREES TO RETURN IT UPON
REQUEST AND AGREES THAT IT WILL NOT BE REPRODUCED, COPIED LENT
OR OTHERWISE DISPOSED OF DIRECTLY OR INDIRECTLY, NOR USED FOR
ANY OTHER PURPOSE OTHER THAN WHICH IT IS FURNISHED.
NONE
Apr 2011
240K-C2-
3510
00501
LIC
3510
00501
LIT
3510
00581
II
3510
00581
XA
3510
00502
LT
3510
00581
HS
3510
00502
LE
3510
00501
LE
MIN.
J/SP
VENDOR
VENDOR
1"x1/2"
C2-3510-CF-706 12"
3510
00501 B
LV
+
3510
00501 A
LV
+
3510
00503
AE
3510
00503
AIT
3510
00503
AI
3510
00582
HS
J/SP
C2-3510-CF-707
VENDOR
H, P2
L, P2
12"
ORP
ORP
C2-3510-LA-612
3510
00507
XV
+
FI
V1
3510
00517
XV
+
FI
V1
3510
00585
II
3510
00585
XA
3510
00585
HS
J/SP
3510
00586
II
3510
00586
XA
3510
00586
HS
J/SP
T3
3510
00515
PI
3510
00514
FI
3510
00515
PIT
3510
00514
FIT
M
3510
00514
FE
+
T3
3510
00505
PI
3510
00504
FI
3510
00505
PIT
3510
00504
FIT
M
L, P2
3510
00504
FE
+
2"x1"
3510
00510
LE
3510
00510
LIT
3510
00510
LIC
3510
00508
XV
+
FI
V1
3510
00518
XV
+
FI
V1
3510
00509
XV
+
FI
V1
FI
V1
3510
00519
XV
+
3510
00513
PI
M
3510
00520
FIT
3510
00520
DE
3510
00520
DIT
3510
00520
FI
3510
00520
FY
3510
00520
DI
3510
00520
WQI
3510
00520
FE
+
L, P2
AFD
AFD
4"x8"
4"x8"
C2-3510-BX-603
C2-3510-PP-606
C2-3510-PP-605
VENDOR
3510
00511
FIC
3510
00511
FIT
3510
00511
FE
+
3510
00511
FV
+
FAULT
L, P2
2"x1-1/2"
2"x1-1/2"
2"x1"
2"x1"
NOTES:
1. MINIMUM DISTANCE TO BE MAINTAINED BETWEEN VALVE AND FITTINGS OR FLANGES.
MASS
FLOW
H,P2
L, P2
LL, P2
3510
00582
II
3510
00582
XA FAULT
3510
00502
LI
NOTE 1
NOTE 1
L, P2
LL, P1
L, P2
LL, P1
MIN. MIN.
SIZE:
C2-3510-LA-612
MO ROUGHER SCAVENGER FLOTATION LAUNDER
SIZE:
MOTOR:
C2-3510-CF-706
MO ROUGHER SCAVENGER FLOTATION CELL NO.6
SIZE:
MOTOR:
C2-3510-CF-707
MO ROUGHER SCAVENGER FLOTATION CELL NO.7
1-1/2"x1"
SPENT PROCESS GAS
EQUALIZATION HEADER
1868 3500-25J-004
NITROGEN
NITROGEN VAPORIZER,
C2-3510-ZM-528
1869 3500-25J-041
MO ROUGHER SCAV. CONC.
CU-MO CONC. THICKENER
FEED BOX, C2-3510-BX-003
1855 3500-25J-001
MO ROUGHER TAILING
MO ROUGHER CELL NO.5,
C2-3510-CF-705
1871 3500-25J-004
MO ROUGHER SCAV. TAIL.
MO ROUGHER TAILING PUMP
BOX, C2-3510-BX-604
1876 3500-25J-025
MO ROUGHER FEED
MO ROUGHER ANALYZER,
C2-3520-AZ-601
1885 3500-25J-006
GLAND SEAL WATER
1063 3900-25J-023
T1
MO ROUGHER TAILING
MO ROUGHER CELL NO.5,
C2-3510-CF-705
1062 3500-25J-004
T1
3510-SL-1434-R1A-2"-N
SIZE:
MATERIAL:
CAPACITY:
TRIM:
C2-3510-BX-603
MO ROUGHER SCAVENGER CONCENTRATE PUMPBOX
3510-SL-1427-R1A-8"-N
SIZE:
MATERIAL:
MOTOR:
C2-3510-PP-605
MO ROUGHER SCAVENGER CONCENTRATE PUMP NO. 1
3510-WR-1804-C1A-4"-N
ES
ES
3510-WG-1078-C1A-1"-N
3510-SL-1430-R1A-10"-N
3510-N2G-1004-C1D-2"-N
3510-SL-1429-R1A-8"-N
ES
3510-WR-1814-C1A-2"-N
3510-WR-1815-C1A-2"-N
3510-WR-1816-C1A-1"-N
3510-WG-1038-C1A-2"-N
ES
3510-SL-1422-R1A-10"-N
3510-SL-1428-R1A-8"-N
SIZE:
MATERIAL:
MOTOR:
C2-3510-PP-606
MO ROUGHER SCAVENGER CONCENTRATE PUMP NO. 2
3510-SL-1426-R1A-8"-N
ES
3510-PG-1010-C1A-4"-N
3510-PG-1004-C1A-10"-N
ES
SPENT PROCESS GAS
EQUALIZATION HEADER
1875 3500-25J-025
AG
KM
LT
ISSUED FOR CLIENT REVIEW
22-Dec-11
B
RP
ISSUED FOR COMBINED REVIEW
30-Jun-11
A
12/22/2011
K. MUNDY
A. GUNSON
A. REGNAULT
L. TAMELIN
12/22/2011
2:13:53
PM
WBS: 3510
B
PIPING AND INSTRUMENTATION DIAGRAM
MOLY PLANT
3500-25J-005
MO ROUGHER SCAVENGER FLOTATION
3510
00509
ZS
3510
00509
XA
3510
00519
ZS
3510
00519
XA
FAULT
FAULT
3510
00518
ZS
3510
00518
XA
OP/CL
3510
00517
ZS
OP/CL
3510
00507
ZS
OP/CL
3510
00517
XA
3510
00507
XA
3510
00508
ZS
3510
00508
XA
OP/CL
OP/CL
3510
00520
DX
FC
SAMPLE RETURN
3510-PG-1009-C1A-6"-N
V V
NAHS SOLUTION
NAHS INJECTOR NO.5,
C2-3510-ZM-631
3562 3500-25J-037
3510-SL-1469-R1A-6"-N
3510-SL-1420-R1A-12"-N 3510-SL-1421-R1A-12"-N
3510-PG-1042-C1A-4"-N
3510-WR-1813-C1A-3"-N
3510-RC-1151-C1D-1"-N
DEFOAMER
INJECTOR, C2-3510-ZM-648
2885 3500-25J-033
3510-RS-1057-S1B-1"-N
PROCESS WATER
1874 3900-25J-016
NOTE 1
3510
00601
AIT
3510
00601
AE
3510
00601
AI
MO ROUGHER TAILING
MO ROUGHER TAILING
PUMPBOX, C2-3510-BX-604
1884 3500-25J-025
MO ROUGHER FEED
MO ROUGHER SCAV. CONC.
PUMPBOX, C2-3510-BX-603
1885 3500-25J-005
MO ROUGHER CONC.
1ST CLEANER CONDITIONING,
C2-3510-TK-603
1886 3500-25J-007
MO ROUGHER CONC.
ROUGHER CONC. PUMPS,
C2-3510-PP-600/602
1858 3500-25J-004
MO ROUGHER FEED
MO ROUGHER FEED
SAMPLER, C2-3510-SA-611
1881 3500-25J-002
CU CONCENTRATE
MO ROUGHER TAILING
SAMPLER, C2-3510-SA-613
1880 3500-25J-025
MO ROUGHER CONC.
MO ROUGHER CONC.
PUMPBOX, C2-3510-BX-600
1878 3500-25J-004
FLUOR
VENDOR
VENDOR
NOTE 1
PH
FLUOR
NOTE 1
H, P2
L, P2
C2-3510-AZ-601
C2-3510-SA-612
V
3510-WR- -C1A-1-1/2"-N
3510-WF-1424-C1A-1/2"-N
3510-SL-1417-R1A-12"-N
3510-SL-1403-R1A-3"-N
3510-SL-1432-R1A-12"-N
3510-WF-1423-C1A-4"-N
3510-SL-1413-R1A-3"-N
SIZE:
C2-3510-AZ-601
MO ROUGHER IN-STREAM ANALYZER
3510-SL-1435-R1A-4"-N
AG
KM
LT
ISSUED FOR CLIENT REVIEW
22-Dec-11
B
RP
ISSUED FOR COMBINED REVIEW
30-Jun-11
A
12/22/2011
K. MUNDY
A. GUNSON
A. REGNAULT
L. TAMELIN
12/22/2011
2:14:40
PM
WBS: 3510
B
PIPING AND INSTRUMENTATION DIAGRAM
MOLY PLANT
3500-25J-006
MO ROUGHER CONCENTRATE SAMPLING
3510-SL-1557-R1A-4"-N
3510-SL-1434-R1A-2"-N
SIZE:
MATERIAL:
CAPACITY:
TRIM:
C2-3510-SA-612
MO ROUGHER CONCENTRATE SAMPLER
ES
3510-SL-1433-R1A-3"-N
D
4
F
B
A
3
2
1 5 6 8
E
7
C
REV.
APPROVED
CHK.
DES.
REV. DATE REVISION DESCRIPTION
CLIENT
LEAD ENGINEER
SCALE DRAWING NUMBER
CHECK DESIGN CHECK DRAWING
DESIGNED BY DRAWN BY
APPROVAL DATE
APPROVAL DATE
APPROVED
CHK.
DES.
REV. DATE REVISION DESCRIPTION REFERENCE DRAWING No.
1:100
0
1:200
5m
10m
0
5m
10m
15m
20m
1:500
10m
0
20m
30m
40m
50m
1:1000
0
100m
50m
1:20
0
0.5m
1m
1.5m
2m
0
1:25
0.5m
1m
1.5m
1:33
1/3
2.5m
2m
0
1m
2m
3m
0
1:50
1m
2m
3m
4m
5m
CAD FILE NAME: P:0CAD000SPEM**
MODEL UPDATED:
DWG. FILE UPDATED:
MANUAL CHANGES MADE: YES NO YES NO YES NO
PROJECT MANAGER
ENGINEERING MANAGER
AREA PROJECTENGINEER
REFERENCE DRAWINGS
SAFETY SHARE:
APPROVAL DATE
CONTRACT
NO.
SAFETY SHARE :
BA6CVA1.IGR
NOTICE: THIS DRAWING HAS NOT BEEN PUBLISHED AND IS THE SOLE
PROPERTY OF FLUOR AND IS LENT TO THE BORROWER FOR THEIR
CONFIDENTIAL USE ONLY, AND IN CONSIDERATION OF THE LOAN OF THIS
DRAWING, THE BORROWER PROMISES AND AGREES TO RETURN IT UPON
REQUEST AND AGREES THAT IT WILL NOT BE REPRODUCED, COPIED LENT
OR OTHERWISE DISPOSED OF DIRECTLY OR INDIRECTLY, NOR USED FOR
ANY OTHER PURPOSE OTHER THAN WHICH IT IS FURNISHED.
NONE
Apr 2011
240K-C2-
PROCESS WATER
3321 3900-25J-016
NOTE:
1. PROVISION FOR AUTOMATED SHIFT SAMPLES.
FRESH WATER
3053 5100-25J-015
T1
T1
T1
T1
T1
T1
T1
VENDOR
VENDOR
3510
00787
XA
3510
00787
II
3510
00787
HS
3510
00705
AE
3510
00705
AIT
3510
00782
HS
3510
00703
AIT
3510
00783
II
3510
00703
AE
3510
00701
LE
3510
00702
LE
3510
00781
HS
3510
00702
LT
3510
00701
LIT
3510
00783
XA
3510
00783
HS
3510
00702
LI
3510
00782
XA FAULT
3510
00782
II
3510
00703
AI
3510
00781
XA FAULT
3510
00781
II
3510
00701
LIC
3510
00714
FIC
3510
00714
FIT
3510
00704
FIT
3510
00704
FIC
3510
00785
XA FAULT
3510
00785
II
3510
00785
HS
3510
00713
AIT
3510
00713
AI
3510
00713
AE
3510
00784
XA FAULT
3510
00711
LE
3510
00784
II
3510
00712
LE
3510
00784
HS
3510
00712
LT
3510
00711
LIT
3510
00711
LIC
3510
00712
LI
3510
00786
HS
3510
00786
XA
3510
00786
II
3510
00705
AI
MIN.
MIN.
SPENT PROCESS GAS
EQUALIZATION HEADER
2492 3500-25J-011
PROCESS WATER
2493 3500-25J-011
MO 1ST CLEANER CONC.
MO 1ST CLEANER LAUNDER,
C2-3510-LA-615 CONTINUES
2494 3500-25J-011
MO 2ND CLEANER TAILING
MO 2ND CLEANER TAILING
PUMPS, C2-3510-PP-624/625
2485 3500-25J-016
MOLY COLLECTOR
INJECTOR, C2-3510-ZM-640
2486 3500-25J-034
NAHS
INJECTOR NO.2,
C2-3510-ZM-664
2487 3500-25J-037
MO 1ST CLEANER TAIL.
MO 1ST CLEANER FLOTATION
CELL NO.5 & NO.6
2489 3500-25J-011
MO 1ST CLEANER TAIL.
MO 1ST CLEANER FLOTATION
CELL NO.5 & NO.6
2490 3500-25J-011
NA2SIO3
INJECTOR, C2-3510-ZM-644
2810 3500-25J-032
NITROGEN
NITROGEN VAPORIZER,
C2-3510-ZM-528
2850 3500-25J-041
NITROGEN
NITROGEN VAPORIZER,
C2-3510-ZM-528
2848 3500-25J-041
MO ROUGHER CONC.
ROUGHER FLOTATION CONC.
SAMPLER, C2-3510-SA-612
1886 3500-25J-006
CO2 GAS
CO2 VAPORIZER,
C2-3510-ZM-527
3341 3500-25J-036
FAULT
J/SP
J/SP
J/SP
H, P2
L, P2
VENDOR
VENDOR
VENDOR
J/SP
J/SP
ORP
VENDOR
H, P2
L, P2
VENDOR
VENDOR
ORP
FAULT
J/SP
FAULT
J/SP
HH, P1
N9 N12
3510
00704
FV
+
3510
00714
FV
+
2"x1/2"
C2-3510-CF-713
C2-3510-CF-712
12"
12"
2"x1"
2"x1"
3510
00701 A
LV
+
3510
00701 B
LV
+
C2-3510-CF-711
2"x1/2"
C2-3510-TK-603
C2-3510-AG-603
C2-3510-LA-615
SIZE:
MATERIAL:
CAPACITY:
TRIM:
C2-3510-TK-603
MO 1ST CLEANER CONDITIONING TANK
SIZE:
MOTOR:
C2-3510-AG-603
MO 1ST CLEANER CONDITIONING TANK AGITATOR
SIZE:
MOTOR:
C2-3510-CF-711
MO 1ST CLEANER FLOTATION CELL NO. 1
SIZE:
MOTOR:
C2-3510-CF-712
MO 1ST CLEANER FLOTATION CELL NO. 2
SIZE:
MOTOR:
C2-3510-CF-713
MO 1ST CLEANER FLOTATION CELL NO. 3
SIZE:
MOTOR:
C2-3510-CF-714
MO 1ST CLEANER FLOTATION CELL NO. 4
SIZE:
C2-3510-LA-615
MO 1ST CLEANER FLOTATION LAUNDER
ES
AG
KM
LT
ISSUED FOR CLIENT REVIEW
22-Dec-11
B
RP
ISSUED FOR COMBINED REVIEW
30-Jun-11
A
12/22/2011
K. MUNDY
A. GUNSON
A. REGNAULT
L. TAMELIN
12/22/2011
1:07:29
PM
WBS: 3510
B
PIPING AND INSTRUMENTATION DIAGRAM
MOLY PLANT
3500-25J-007
MO FIRST CLEANER CELLS 1 TO 4
3510-SL-1506-R1A-6"-N
3510-SL-1432-R1A-12"-N
3510-RC-1163-C1D-1"-N
3510-RS-1058-S1B-1"-N
3510-RS-1015-C1A-2"-N
3510-WR- -C1A-4"-N
3510-PG-1011-C1A-10"-N
3510-WR- -C1A-4"-N
N3
M1
N14
N4 N11 N10 N8 N6 N5
N7
12"
12"
3510
00711 A
LV
+
3510
00711 B
LV
+
2"x1"
C2-3510-CF-714
2"x1"
3510
00704
FE
+
ES
1-1/2"x1"
1-1/2"x1"
3510-N2G-1005-C1D-1-1/2"-N
3510-PG-1012-C1A-6"-N
3510-PG-1013-C1A-6"-N
3510
00714
FE
+
3510-N2G-1006-C1D-1-1/2"-N
3510-PG-1011-C1A-6"-N
ES
1-1/2"x1"
1-1/2"x1"
D
4
F
B
A
3
2
1 5 6 8
E
7
C
REV.
APPROVED
CHK.
DES.
REV. DATE REVISION DESCRIPTION
CLIENT
LEAD ENGINEER
SCALE DRAWING NUMBER
CHECK DESIGN CHECK DRAWING
DESIGNED BY DRAWN BY
APPROVAL DATE
APPROVAL DATE
APPROVED
CHK.
DES.
REV. DATE REVISION DESCRIPTION REFERENCE DRAWING No.
1:100
0
1:200
5m
10m
0
5m
10m
15m
20m
1:500
10m
0
20m
30m
40m
50m
1:1000
0
100m
50m
1:20
0
0.5m
1m
1.5m
2m
0
1:25
0.5m
1m
1.5m
1:33
1/3
2.5m
2m
0
1m
2m
3m
0
1:50
1m
2m
3m
4m
5m
CAD FILE NAME: P:0CAD000SPEM**
MODEL UPDATED:
DWG. FILE UPDATED:
MANUAL CHANGES MADE: YES NO YES NO YES NO
PROJECT MANAGER
ENGINEERING MANAGER
AREA PROJECTENGINEER
REFERENCE DRAWINGS
SAFETY SHARE:
APPROVAL DATE
CONTRACT
NO.
SAFETY SHARE :
BA6CVA1.IGR
NOTICE: THIS DRAWING HAS NOT BEEN PUBLISHED AND IS THE SOLE
PROPERTY OF FLUOR AND IS LENT TO THE BORROWER FOR THEIR
CONFIDENTIAL USE ONLY, AND IN CONSIDERATION OF THE LOAN OF THIS
DRAWING, THE BORROWER PROMISES AND AGREES TO RETURN IT UPON
REQUEST AND AGREES THAT IT WILL NOT BE REPRODUCED, COPIED LENT
OR OTHERWISE DISPOSED OF DIRECTLY OR INDIRECTLY, NOR USED FOR
ANY OTHER PURPOSE OTHER THAN WHICH IT IS FURNISHED.
NONE
Apr 2011
240K-C2-
3510
00707
AE
3510
00707
AIT
3510
00707
AI
3510
00708
AE
3510
00708
AIT
3510
00708
AI
ES
H, P2
H, P2
L, P2
H2S
PH
FC
FC
C
V
V
V
V
3510-WR-1321-C1A-4"-N
3510-PG-1002-CIA-2"-N
3510-WR-1825-C1A-2"-N
3510-WR-1826-C1A-2"-N
3510-WR-1827-C1A-2"-N
3510-WR-1828-C1A-2"-N
3510-WR-1829-C1A-2"-N
3510-WR-1830-C1A-2"-N
LAUNDER
3510-SL-1503-R1A-6"-N
3510-SL-1502-R1A-6"-N
3510-SL-1440-R1A-12"-N
3510-SL-1439-R1A-12"-N
3510-SL-1438-R1A-12"-N
3510-SL-1437-R1A-12"-N
3510-RC-1150-C1D-1"-N
3510-SL-1491-R1A-6"-N
3510-SL-1490-R1A-6"-N
DEFOAMER
INJECTOR, C2-3510-ZM-647
2882 3500-25J-033
PROCESS WATER
4221 3900-25J-016
CONC. CLARI. O/F
CLARIFIER O/F TRANSFER
PUMPS, C2-3610-PP-008/009
4140 3600-25J-004
3510-WR- -C1A-4"-N
3510-PG-1016-C1A-4"-N
D
4
F
B
A
3
2
1 5 6 8
E
7
C
REV.
APPROVED
CHK.
DES.
REV. DATE REVISION DESCRIPTION
CLIENT
LEAD ENGINEER
SCALE DRAWING NUMBER
CHECK DESIGN CHECK DRAWING
DESIGNED BY DRAWN BY
APPROVAL DATE
APPROVAL DATE
APPROVED
CHK.
DES.
REV. DATE REVISION DESCRIPTION REFERENCE DRAWING No.
1:100
0
1:200
5m
10m
0
5m
10m
15m
20m
1:500
10m
0
20m
30m
40m
50m
1:1000
0
100m
50m
1:20
0
0.5m
1m
1.5m
2m
0
1:25
0.5m
1m
1.5m
1:33
1/3
2.5m
2m
0
1m
2m
3m
0
1:50
1m
2m
3m
4m
5m
CAD FILE NAME: P:0CAD000SPEM**
MODEL UPDATED:
DWG. FILE UPDATED:
MANUAL CHANGES MADE: YES NO YES NO YES NO
PROJECT MANAGER
ENGINEERING MANAGER
AREA PROJECTENGINEER
REFERENCE DRAWINGS
SAFETY SHARE:
APPROVAL DATE
CONTRACT
NO.
SAFETY SHARE :
BA6CVA1.IGR
NOTICE: THIS DRAWING HAS NOT BEEN PUBLISHED AND IS THE SOLE
PROPERTY OF FLUOR AND IS LENT TO THE BORROWER FOR THEIR
CONFIDENTIAL USE ONLY, AND IN CONSIDERATION OF THE LOAN OF THIS
DRAWING, THE BORROWER PROMISES AND AGREES TO RETURN IT UPON
REQUEST AND AGREES THAT IT WILL NOT BE REPRODUCED, COPIED LENT
OR OTHERWISE DISPOSED OF DIRECTLY OR INDIRECTLY, NOR USED FOR
ANY OTHER PURPOSE OTHER THAN WHICH IT IS FURNISHED.
NONE
Apr 2011
240K-C2-
T3
T3
C2-3510-PP-609
C2-3510-PP-610
3510
01185
II
3510
01185
XA
3510
01185
HS
J/SP
AFD
3510
01186
II
3510
01186
XA
3510
01186
HS
J/SP
AFD
C2-3510-BX-617
N9 N5 N11 N6
N2
N1
N4
3510
01110
LE
3510
01110
LT
3510
01110 A
LI
3510
01110
LIC
SIZE:
MATERIAL:
CAPACITY:
TRIM:
C2-3510-BX-617
MO 1ST CLEANER TAILING PUMPBOX
SIZE:
MATERIAL:
MOTOR:
C2-3510-PP-609
MO 1ST CLEANER TAILING PUMP NO. 1
SIZE:
MATERIAL:
MOTOR:
C2-3510-PP-610
MO 1ST CLEANER TAILING PUMP NO. 2
SIZE:
MOTOR:
C2-3510-CF-715
MO 1ST CLEANER FLOTATION CELL NO. 5
SIZE:
MOTOR:
C2-3510-CF-717
MO 1ST CLEANER FLOTATION CELL NO. 7
C2-3510-CF-715 C2-3510-CF-717
MO 1ST CLEANER TAILING
MO 1ST CLEANER FLOTATION
CELL 4, C2-3510-CF-714
2489 3500-25J-007
MO 1ST CLEANER TAILING
MO 1ST CLEANER FLOTATION
CELL 4, C2-3510-CF-714
2490 3500-25J-007
T1
T1 T1
3510
01101
LE
3510
01102
LE
3510
01101 A
LV
+
3510
01101 B
LV
+
3510
01103
AIT
3510
01103
AI
3510
01103
AE
ORP
H, P2
L, P2
3510
01102
LT
3510
01101
LIT
3510
01101
LIC
3510
01102
LI
3510
01183
II
3510
01183
XA
3510
01183
HS
FAULT
J/SP
3510
01181
II
3510
01181
XA
3510
01181
HS
FAULT
J/SP
3510
01184
II
3510
01184
XA
3510
01184
HS
FAULT
J/SP
3510
01105
PIT
3510
01105
PI
M
3510
01104
FIT
3510
01104
FI
3510
01104
FE
+
ES
3510
01115
PIT
3510
01115
PI
M
3510
01114
FIT
3510
01114
FI
3510
01114
FE
+
ES
L, P2
LL, P1
L, P2
L, P2
LL, P1
L, P2
3510
01107
XV
+
3510
01117
XV
+
3510
01108
XV
+
3510
01113
PI
M
3510
01120
FIT
3510
01120
FI
3510
01120
FY
3510
01120
DE
3510
01120
DIT
3510
01120
DI
3510
01120
WQI
3510
01120
DX
ES
ES
3510
01120
FE
+
MO 1ST CLEANER TAILING
CU MO THICKENER FEED
BOX, C2-3510-BX-003
1854 3500-25J-001
3510
01109
XV
+
3510
01119
XV
+
3510
01118
XV
+
MO 1ST CLEANER CELL
MO 1ST CLEANER LAUNDER,
C2-3510-LA-615, CONTINUES
2494 3500-25J-007
MO INTERMEDIATE
THICKENER O/F,
2497 3500-25J-014
SPENT PROCESS GAS
EQUALIZATION HEADER
2492 3500-25J-007
PROCESS WATER
2493 3500-25J-007
MO 1ST CLEANER CONC.
MO 2ND CLEANER FEED
PUMPBOX, C2-3510-BX-609
2499 3500-25J-016
(LAUNDER)
VENDOR
3510
01112
AE
3510
01112
AI
3510
01112
AIT
H, P2
LL, P1
L, P2
H, P2
MIN
MIN
MIN
MIN
MIN
MIN
3510-WR-1851-C1A-8"-N
3510-SL-1449-R1A-8"-N
3510-SL-1448-R1A-8"-N
3510-SL-1451-R1A-6"-N
3510-SL-1450-R1A-6"-N
MIN
MIN
H2S
3510-PG-1015-C1A-6"-N
1-1/2"x1"
1-1/2"x1"
3510
01111
FE
+
3510
01111
FIC
3510
01111
FIT
NITROGEN
NITROGEN VAPORIZER,
C2-3510-ZM-528
2837 3500-25J-041
ES
AG
KM
LT
ISSUED FOR CLIENT REVIEW
22-Dec-11
B
RP
ISSUED FOR COMBINED REVIEW
30-Jun-11
A
12/22/2011
K. MUNDY
A. GUNSON
A. REGNAULT
L. TAMELIN
12/22/2011
2:16:21
PM
WBS: 3510
B
PIPING AND INSTRUMENTATION DIAGRAM
MOLY PLANT
3500-25J-011
MO FIRST CLEANER CELLS 5 TO 7
3510
01111
FV
+
3510
01119
ZS
3510
01109
XA
3510
01119
XA
OP/CL
3510
01109
ZS
OP/CL
MASSFLOW
FAULT
FAULT
3510
01107
ZS
OP/CL
3510
01117
ZS
OP/CL
3510
01107
XA
3510
01108
XA
3510
01117
XA
3510
01108
ZS
OP/CL
3510
01118
ZS
OP/CL
3510
01118
XA
GLAND SEAL WATER
3322 3900-25J-023
FI FI
NC
FI
FI
FI
V V
VENDOR
T1
3510
01182
II
3510
01182
XA
3510
01182
HS
FAULT
J/SP
NAHS SOLUTION
NAHS INJECTOR NO.6,
C2-3510-ZM-632
3566 3500-25J-037
FC
C2-3510-CF-716
3510-WG-1041-C1A-1-1/2"-N
3510-PG-1011-C1A-10"-N
C2-3520-TK-602
3510-WR- -C1A-4"-N
SIZE:
MOTOR:
C2-3510-CF-716
MO 1ST CLEANER FLOTATION CELL NO. 6
3510-RC-1059-S1B-1"-N
3510-N2G-1007-C1D-1-1/2"-N
3510-WR-1831-C1A-2"-N
3510-WR-1832-C1A-2"-N
3510-WR-1833-C1A-2"-N
3510-WF-1079-C1A-1"-N
3510-WR-1835-C1A-2"-N
3510-SL-1441-R1A-8"-N
3510-SL-1442-R1A-8"-N
3510-SL-1443-R1A-8"-N
3510-WR-1834-C1A-2"-N
C2-3510-LA-615
SIZE:
C2-3510-LA-615
MO 1ST CLEANER FLOTATION LAUNDER
3510-WG- -C1A-1"-N
CONC.
D
4
F
B
A
3
2
1 5 6 8
E
7
C
REV.
APPROVED
CHK.
DES.
REV. DATE REVISION DESCRIPTION
CLIENT
LEAD ENGINEER
SCALE DRAWING NUMBER
CHECK DESIGN CHECK DRAWING
DESIGNED BY DRAWN BY
APPROVAL DATE
APPROVAL DATE
APPROVED
CHK.
DES.
REV. DATE REVISION DESCRIPTION REFERENCE DRAWING No.
1:100
0
1:200
5m
10m
0
5m
10m
15m
20m
1:500
10m
0
20m
30m
40m
50m
1:1000
0
100m
50m
1:20
0
0.5m
1m
1.5m
2m
0
1:25
0.5m
1m
1.5m
1:33
1/3
2.5m
2m
0
1m
2m
3m
0
1:50
1m
2m
3m
4m
5m
CAD FILE NAME: P:0CAD000SPEM**
MODEL UPDATED:
DWG. FILE UPDATED:
MANUAL CHANGES MADE: YES NO YES NO YES NO
PROJECT MANAGER
ENGINEERING MANAGER
AREA PROJECTENGINEER
REFERENCE DRAWINGS
SAFETY SHARE:
APPROVAL DATE
CONTRACT
NO.
SAFETY SHARE :
BA6CVA1.IGR
NOTICE: THIS DRAWING HAS NOT BEEN PUBLISHED AND IS THE SOLE
PROPERTY OF FLUOR AND IS LENT TO THE BORROWER FOR THEIR
CONFIDENTIAL USE ONLY, AND IN CONSIDERATION OF THE LOAN OF THIS
DRAWING, THE BORROWER PROMISES AND AGREES TO RETURN IT UPON
REQUEST AND AGREES THAT IT WILL NOT BE REPRODUCED, COPIED LENT
OR OTHERWISE DISPOSED OF DIRECTLY OR INDIRECTLY, NOR USED FOR
ANY OTHER PURPOSE OTHER THAN WHICH IT IS FURNISHED.
NONE
Apr 2011
240K-C2-
3510
01211
LIT
3510
01212
LT
3510
01284
HS
2"x1"
SIZE:
C2-3510-LA-616
MO CLEANER SCAVENGER FLOTATION LAUNDER
3510
01212
LE
SIZE:
MOTOR:
C2-3510-CF-724
MO CLEANER SCAVENGER FLOTATION CELL NO.4
3510
01284
II
C2-3510-CF-724
SIZE:
MOTOR:
C2-3510-CF-723
MO CLEANER SCAVENGER FLOTATION CELL NO.3
3510
01211
LE
2"x1"
SIZE:
MOTOR:
C2-3510-CF-722
MO CLEANER SCAVENGER FLOTATION CELL NO.2
FAULT
3510
01211 B
LV
+
SIZE:
MOTOR:
C2-3510-CF-721
MO CLEANER SCAVENGER FLOTATION CELL NO.1
3510
01284
XA
3510
01213
AE
3510
01213
AI
3510
01211 A
LV
+
3510
01213
AIT
3510
01285
HS
12"
3510
01285
II
12"
FAULT
3510
01285
XA
C2-3510-CF-723
1"x1/2"
3510
01201
LIC
3510
01281
II
FAULT
3510
01281
XA
3510
01203
AI
3510
01282
II
FAULT
3510
01282
XA
3510
01202
LI
3510
01201
LIT
3510
01202
LT
3510
01281
HS
1"x1/2"
3510
01202
LE
C2-3510-CF-721
3510
01201
LE
3510
01201 B
LV
+
3510
01203
AE
3510
01201 A
LV
+
3510
01203
AIT
3510
01282
HS
2"x1"
VENDOR
12"
VENDOR
T1
12"
C2-3510-CF-722
C2-3510-LA-616
FAULT
J/SP
ORP
VENDOR
VENDOR
H, P2
L, P2
VENDOR
ORP
J/SP
J/SP
VENDOR
VENDOR
VENDOR
H, P2
L, P2
J/SP
J/SP
MIN.
MIN.
3510
01286
II
3510
01286
XA
3510
01286
HS
3510
01212
LI
3510
01211
LIC
T1
FROTH PADDLE MOTOR
3510
01283
II
3510
01283
XA
3510
01283
HS
FAULT
J/SP
2"x1"
1"
BA-
MIN
SPLIT RANGE SPLIT RANGE
MIN.
T1 T1 T1
T1 FROTH PADDLE MOTOR
3" KG-
3" KG-
BA-
BA-
1"
BA-
1"
BA-
1"
BA-
3510-PG-1018-C1A-6"-N
3510-SL-1517-R1A-6"-N
3RD CLEANER TAILING
3RD CLEANER COLUMN CELL,
C2-3510-CM-601
2230 3500-25J-017
PROCESS WATER
2496 3900-25J-016
PROCESS WATER
2500 3500-25J-013
SPENT PROCESS GAS
EQUALIZATION HEADER
2501 3500-25J-013
MO CLEANER SCAV. TAIL.
CLEANER SCAVENGER
FLOTATION CELLS,
2502 3500-25J-013
MO CLEANER SCAV. TAIL.
CLEANER SCAVENGER
FLOTATION CELLS,
2503 3500-25J-013
MO CLEANER SCAV. CONC.
MO CLEANER SCAVENGER
FLOTATION LAUNDER
2504 3500-25J-013
R1A
SLOPE
R1A
3510-PG-1017-C1A-10"-N
V
V
V
V
V
V
V
V
V
V
V
V
SPENT PROCESS GAS
EQUALIZATION HEADER
2825 3500-25J-014
3510-PG-1024-C1A-4"-N
3510
01204
FE
+
3510
01204
FIT
3510
01204
FIC
1-1/2"x1" 1-1/2"x1"
3510
01214
FE
+
3510
01214
FIT
3510
01214
FIC
1-1/2"x1" 1-1/2"x1"
NITROGEN
NITROGEN VAPORIZER,
C2-3510-ZM-528
2835 3500-25J-041
NITROGEN
NITROGEN VAPORIZER,
C2-3510-ZM-528
2836 3500-25J-041
3510-N2G-1009-C1D-1-1/2"-N
3510-N2G-1008-C1D-1-1/2"-N
3510-WR- -C1A-4"-N 3510-WR- -C1A-4"-N
ES
ES
AG
KM
LT
ISSUED FOR CLIENT REVIEW
22-Dec-11
B
RP
ISSUED FOR COMBINED REVIEW
30-Jun-11
A
12/22/2011
K. MUNDY
A. GUNSON
A. REGNAULT
L. TAMELIN
12/22/2011
12:20:14
PM
WBS: 3510
B
PIPING AND INSTRUMENTATION DIAGRAM
MOLY PLANT
3500-25J-012
MO CLEANER SCAVENGER CELLS 1 TO 4
3510
01214
FV
+
3510
01204
FV
+
C2-3510-CF-725
C2-3510-CF-725
V
V
V
V
FC
FC
NAHS SOLUTION
NAHS INJECTOR NO.8,
C2-3510-ZM-634
3579 3500-25J-037
NAHS SOLUTION
NAHS INJECTOR NO.7,
C2-3510-ZM-633
3580 3500-25J-037
3510-RC-1061-S1B-1"-N
3510-RC-1060-S1B-1"-N
3510-WR-1836-C1A-2"-N
3510-WR-1837-C1A-2"-N
3510-WR-1838-C1A-1"-N
3510-PG-1019-C1D-6"-N
3510-WR-1837-C1A-2"-N
3510-N2G-1009-C1D-1-1/2"-N
3510-WR-1840-C1A-2"-N
3510-WR-1841-C1A-1"-N
3510-SL-1451-R1A-6"-N
3510-SL-1452-R1A-6"-N
3510-SL-1453-R1A-6"-N
3510-SL-1454-R1A-6"-N
3510-SL-1510-R1A-3"-N 3510-SL-1511-R1A-3"-N
3510-RS-1024-S1B-2"-N
CONC. CLARIFIER O/F
CLARIFIER O/F TRANSFER
PUMPS, C2-3610-PP-008/009
4141 3600-25J-004
3510-WR- -C1A-4"-N
SODIUM SILICATE
SODIUM SILICATE INJECTOR,
C2-3510-ZM-652
3793 3500-25J-032
OP/CL
D
4
F
B
A
3
2
1 5 6 8
E
7
C
REV.
APPROVED
CHK.
DES.
REV. DATE REVISION DESCRIPTION
CLIENT
LEAD ENGINEER
SCALE DRAWING NUMBER
CHECK DESIGN CHECK DRAWING
DESIGNED BY DRAWN BY
APPROVAL DATE
APPROVAL DATE
APPROVED
CHK.
DES.
REV. DATE REVISION DESCRIPTION REFERENCE DRAWING No.
1:100
0
1:200
5m
10m
0
5m
10m
15m
20m
1:500
10m
0
20m
30m
40m
50m
1:1000
0
100m
50m
1:20
0
0.5m
1m
1.5m
2m
0
1:25
0.5m
1m
1.5m
1:33
1/3
2.5m
2m
0
1m
2m
3m
0
1:50
1m
2m
3m
4m
5m
CAD FILE NAME: P:0CAD000SPEM**
MODEL UPDATED:
DWG. FILE UPDATED:
MANUAL CHANGES MADE: YES NO YES NO YES NO
PROJECT MANAGER
ENGINEERING MANAGER
AREA PROJECTENGINEER
REFERENCE DRAWINGS
SAFETY SHARE:
APPROVAL DATE
CONTRACT
NO.
SAFETY SHARE :
BA6CVA1.IGR
NOTICE: THIS DRAWING HAS NOT BEEN PUBLISHED AND IS THE SOLE
PROPERTY OF FLUOR AND IS LENT TO THE BORROWER FOR THEIR
CONFIDENTIAL USE ONLY, AND IN CONSIDERATION OF THE LOAN OF THIS
DRAWING, THE BORROWER PROMISES AND AGREES TO RETURN IT UPON
REQUEST AND AGREES THAT IT WILL NOT BE REPRODUCED, COPIED LENT
OR OTHERWISE DISPOSED OF DIRECTLY OR INDIRECTLY, NOR USED FOR
ANY OTHER PURPOSE OTHER THAN WHICH IT IS FURNISHED.
NONE
Apr 2011
240K-C2-
SPENT PROCESS GAS
EQUALIZATION HEADER
2501 3500-25J-012
PROCESS WATER
2500 3500-25J-012
MO CLEANER SCAV. TAIL.
CLEANER SCAVENGER
FLOTATION CELL,
2502 3500-25J-012
MO CLEANER SCAV. TAIL.
CLEANER SCAVENGER
FLOTATION CELL,
2503 3500-25J-012
MO CLEANER SCAV. CONC.
CLEANER SCAVENGER FLOT.
LAUNDER, C2-3510-LA-616,
2504 3500-25J-012
2ND CLEANER FLOT. CONC.
MO SECOND CLEANER
CONCENTRATE LAUNDER,
2526 3500-25J-016
MO CLEANER SCAV. TAIL.
MO SECOND CLEANER
FLOTATION CELL,
2527 3500-25J-015
NITROGEN
NITROGEN VAPORIZER,
C2-3510-ZM-528
2831 3500-25J-041
AG
KM
LT
ISSUED FOR CLIENT REVIEW
22-Dec-11
B
RP
ISSUED FOR COMBINED REVIEW
30-Jun-11
A
12/22/2011
K. MUNDY
A. GUNSON
A. REGNAULT
L. TAMELIN
12/22/2011
2:19:38
PM
WBS: 3510
B
PIPING AND INSTRUMENTATION DIAGRAM
MOLY PLANT
3500-25J-013
MO CLEANER SCAVENGER CELLS 5 TO7
GLAND SEAL WATER
3344 3900-25J-023
C2-3510-CF-731
721 TO 724 CONCENTRATE
3"
3510
01311
FE
+
3510
01330
LIC
ORP
3510
01339
XV
+
3" KG-
3510
01310 A
LI
BY
VENDOR
3510-N2G-1010-C1D-1-1/2"-N
3510
01332
PI
MIN.
3510
01314
FE
+
3510
01310
LT
LL, P1
L, P2
H, P2
SIZE:
MATERIAL:
MOTOR:
C2-3510-PP-615
MO CLEANER SCAVENGER TAILING PUMP NO. 1
ES
3510
01320
DX
MIN
3510-N2G-1021-C1A-6"-N
3510
01385
XA
TO FLOOR
C2-3510-BX-606
3510
01312
PI
L, P2
3510
01308
XV
+
3510
01381
II
MIN
3510
01301
LIT
FROTHER PADDLE
MOTOR
1-1/2" BA-
1-1/2" PL-
3510
01320
FY
L, P2
LL, P1
3510
01320
FIT
MIN
3"
3510
01320
FI
L, P2
LL, P1
3510
01301 B
LV
+
OP/CL
VENDOR
3510
01308
ZS
OP/CL
3510-WR-1846-C1A-1"-N
3510-SL-1465-R1A-8"-N
3510
01304
FI
OP/CL
3510
01334
FE
+
3510
01307
XA
OP/CL
ES
FI
J/SP
OP/CL
C2-3510-CF-726
3510
01381
HS
OP/CL
3510-PG-1022-C1A-4"-N
3510
01305
PI
3" KG-
M
3510
01301
LIC
MIN
3510
01324
FE
+
3510
01310
LE
1-1/2" PL-
J/SP
3510
01383
II
1-1/2" PL-
3510
01385
HS
3510
01382
II
1-1/2" PL-
FI
3510
01320
DIT
3510
01383
XA
3510-SL-1464-R1A-8"-N
3510
01320
FE
+
3510
01314
FI
3510
01382
XA
M
FI
FI
L, P2
3510
01696
XA
1/2" BA-
3510
01315
PI
3510
01303
AE
FI
3510
01319
XV
+
3510
01310
LIC
3510
01696
II
ES
MASS
FLOW
3510
01304
FIT
3510
01337
XV
+
3510-SL-1462-R1A-10"-N
3510
01320
WQI
3510
01305
PIT
3510-WR-1845-C1A-1"-N
1-1/2" PL-
M
J/SP
3510
01317
XA
N5
3510
01307
XV
+
3510
01382
HS
3510
01303
AIT
3510
01318
XA
3510
01314
FIT
C2-3510-CF-725
OP/CL
3510
01302
LE
N4
3510-PG-1017-C1A-10"-N
ES
M
3510
01338
ZS
MIN.
N1
3510
01338
XA
3510
01301
LE
3510
01327
ZS OP/CL
N2
C2-3510-PP-615
3510-RS-1062-S1B-1"-N
3510
01337
XA
3510
01315
PIT
M
3510
01327
XA
3510
01330 A
LI
1"
BA-
3510
01328
ZS
3510
01330
LT
3510
01328
XA
3510
01340
FY
1-1/2" PL-
M
OP/CL
J/SP
V
1-1/2" PL-
3510
01329
ZS
3510
01696
HS
V
3510
01328
XV
+
3510-SL-1463-R1A-16"-N
OP/CL
3510
01308
XA
3510
01311
FV
+
V
3510
01318
ZS
3510
01330
LE
FAULT
N12
1"
BA-
3510
01329
XA
FAULT
V
BA-
3510
01339
ZS
3510
01383
II
3510-WR-1320-C1A-2"-N
3510
01339
XA
FI
MIN
3510
01337
ZS
3510
01307
ZS
H, P2
L, P2
BA-
3510-SL-1473-R1A-6"-N
3510
01311
FIC
J/SP
VENDOR
3510
01338
XV
+
3510
01311
FIT
3510
01394
HS
FAULT
1" BA-
OP/CL
3510
01340
WQI
MIN
C2-3510-BX-605
N9
3510
01309
ZS
3510
01317
ZS
AFD
1-1/2" PL-
3510
01319
ZS
3510
01340
DIT
MIN
3510
01319
XA
3510
01340
DI
FI
TO FLOOR
3510-SL-1488-R1A-8"-N
FI
3510
01309
XA
3510
01340
DE
3510-SL-1472-R1A-8"-N
MIN
ES
R1A
3510
01394
II
TO FLOOR
V1
T1
3510
01333
PI
SPLIT RANGE
N6
T1
3510
01394
XA
MIN.
3510
01329
XV
+
C2-3510-CF-727
T1
3510
01640
DX
FAULT
3510
01318
XV
+
T3
3510
01340
FI
3510
01327
XV
+
N9
T3
3510
01340
FIT
FI
3510-WG-1080-C1A-1-1/2"-N
T3
3510
01324
FI
FI
(LAUNDER)
1-1/2" PL-
BY
VENDOR
3510
01324
FIT
FI
AFD
3" KG-
T3
3510
01325
PI
FAULT
T1
3510
01320
DE
FAULT
3510
01320
DI
AFD
C2-3510-PP-617
J/SP
FAULT
N1
ES
3510
01383
HS
AFD
FI
3510
01383
XA
3510
01304
FE
+
1-1/2" PL-
J/SP
MASS
FLOW
C2-3510-PP-618
C2-3510-PP-616
FAULT
3510
01383
HS
N2
3510
01386
XA
3510
01325
PIT
MIN
3510
01309
XV
+
3510
01386
II
3510
01334
FI
BY
VENDOR
SIZE:
MATERIAL:
MOTOR:
C2-3510-PP-618
MO CLEANER SCAVENGER CONCENTRATE PUMP NO. 2
J/SP
3510
01334
FIT
BY
VENDOR
N4
SIZE:
MATERIAL:
MOTOR:
C2-3510-PP-616
MO CLEANER SCAVENGER TAILING PUMP NO. 2
3510
01386
HS
L, P2
LL, P1
L, P2
H, P2
3510-WG-1041-C1A-1-1/2"-N
3510
01340
FE
+
SIZE:
MOTOR:
C2-3510-CF-726
MO CLEANER SCAVENGER FLOTATION CELL NO.6
3510
01335
PI
BY
VENDOR
3510
01317
XV
+
SIZE:
MATERIAL:
MOTOR:
C2-3510-PP-617
MO CLEANER SCAVENGER CONCENTRATE PUMP NO. 1
3510
01385
II
L, P2
BA-
3510-SL-1471-R1A-8"-N
SIZE:
MATERIAL:
CAPACITY:
TRIM:
C2-3510-BX-605
MO CLEANER SCAVENGER TAILING PUMPBOX
3510
01313
PI
BY
VENDOR
3510
01301 A
LV
+
SIZE:
MATERIAL:
CAPACITY:
TRIM:
C2-3510-BX-606
MO CLEANER SCAVENGER CONCENTRATE PUMPBOX
3510
01302
LI
L, P2
LL, P1
3510-WR-1843-C1A-1"-N
SIZE:
MOTOR:
C2-3510-CF-725
MO CLEANER SCAVENGER FLOTATION CELL NO.5
3510
01302
LIT
BY
VENDOR
N5
ES
3510
01303
AI
L, P2
LL, P1
1/2" BA-
3510
01335
PIT
BY
VENDOR
SIZE:
MOTOR:
C2-3510-CF-727
MO CLEANER SCAVENGER FLOTATION CELL NO.7
ES
ES
3510
01381
XA
MIN
NAHS SOLUTION
NAHS INJECTOR NO.9,
C2-3510-ZM-635
3584 3500-25J-037
C2-3510-CF-724
C2-3510-CF-724
MO CLEANER SCAV. CONC.
MO INTERMEDIATE
THICKENER FEED BOX,
2529 3500-25J-014
C2-3510-BX-616
C2-3510-LA-617
3510-SL-1474-R1A-6"-N
3510-WR- -C1A-2"-N
3510-WR-1842-C1A-2"-N
3510-RS-1062-S1B-1"-N
3510-WR-1844-C1A-2"-N
3510-WG-1083-C1A-1"-N
3510-WG-1082-C1A-1-1/2"-N
3510-WG-1081-C1A-1"-N
3510-SL-1466-R1A-8"-N
3510-SL-1467-R1A-8"-N
3510-SL-1414-R1A-3"-N
3510-SL-1458-R1A-10"-N
3510-SL-1455-R1A-8"-N 3510-SL-1456-R1A-8"-N
3510-SL-1457-R1A-8"-N
C2-3510-LA-616
SIZE:
C2-3510-LA-616
MO CLEANER SCAVENGER FLOTATION LAUNDER
CONTINUES
VENDOR
3510
01422
ZS
3510
01423
ZS
3510
01423
XA
3510
01419
ZS
3510
01409
ZS
3510
01409
XA
3510
01419
XA
3510
01412
ZS
OP/CL
3510
01407
ZS
3510
01406
ZS
OP/CL
3510
01416
ZS
OP/CL
3510
01408
ZS
3510
01417
ZS
3510
01412
XA
3510
01407
XA
3510
01417
XA
3510
01406
XA
3510
01408
XA
3510
01416
XA
3510
01418
XA
3510
01418
ZS
3510
01401
DE
3510
01401
DX
3510
01481
HS
J/SP
3510
01402
PSH P1
3510
01481
XA
3510
01401
PIC
3510
01402
PE
3510
01401
PT
3510
01484
HS
J/SP
3510
01481
II
3510
01484
XA
3510
01484
II
3510
01410
ZI
3510
01411
OI
M
3510
01482
HS
3510
01403
PAH
3510
01403
PSH
3510
01401
WQI
3510
01482
XA
3510
01403
PE
3510
01482
II
3510
01401
FY
3510
01483
HS
J/SP
3510
01401
FIC
3510
01483
XA
3510
01401
DIC
3510
01483
II
3510
01401
DIT
3510
01402
PAH
3510
01401
FIT
3510
01422
XA
TO FLOOR
TO
FLOOR
SUMP
TO FLOOR
MO INTER. THICK. O/F
MO 1ST CLEANER TAILING
PUMPBOX, C2-3510-BX-617
2497 3500-25J-011
PROCESS WATER
3346 3900-25J-016
MO CONC. CLARIFIER O/F
CONCENTRATE CLARIFIER
O/F PUMPS,
2547 3600-25J-004
SPENT PROCESS GAS
EQUALIZATION HEADER
2825
3500-25J-012
MO COLUMN AREA SUMP
COLUMN FLOTATION AREA
SUMP PUMP, C2-3510-PP-621
2543 3500-25J-021
MO CONC. THICK. O/F
CLEANER SCAVENGER
CONCENTRATE PUMPBOX,
2529 3500-25J-013
MO CONC. THICK. O/F
THICKENER OVERFLOW
TANK, C2-3510-TK-640
2237 3500-25J-024
MO INTER. THICK. U/F
MO 2ND CLEANER THICKENER
U/F ATRITOR TANK,
2224 3500-25J-017
(J) JF/JR
SP
FAULT
MIN
MIN.
MIN
HH, P1
H, P2 MIN
LIFT POSITION
2% SLOPE
FAULT
MIN
(VENDOR)
MIN
5% SLOPE
P1
MIN
MIN
C2-3510-TK-615
C2-3510-BX-606
OP/CL
OP/CL
OP/CL
OP/CL
FAULT
OP/CL
OP/CL
OP/CL
OP/CL
3510-WR-1847-C1A-4"-N
3510
01417
XV
+
3510
01407
XV
+
FI
3510
01412
XV
+
3510
01409
XV
+
SIZE:
C2-3510-BX-616
MO INTERMEDIATE THICKENER FEED BOX
FI
3510
01406
XV
+
SIZE: 20 m DIA.
MOTOR:
C2-3510-TM-602
MO INTERMEDIATE THICKENER MECHANISM
SIZE:
C2-3510-TK-602
MO INTERMEDIATE THICKENER
FI
3510-WR-1848-C1A-2"-N
3510
01418
XV
+
3510
01419
XV
+
FI
FI
FI
FI
3510
01422
XV
+
FI
C2-3510-BX-616
3510
01423
XV
+
3510
01408
XV
+
C2-3510-TK-602
3510
01401
FE
+
FI
FI
3510
01416
XV
+
C2-3510-TM-602
AG
KM
LT
ISSUED FOR CLIENT REVIEW
22-Dec-11
B
RP
ISSUED FOR COMBINED REVIEW
30-Jun-11
A
12/22/2011
K. MUNDY
A. GUNSON
A. REGNAULT
L. TAMELIN
12/22/2011
12:24:17
PM
WBS: 3510
B
PIPING AND INSTRUMENTATION DIAGRAM
MOLY PLANT
3500-25J-014
MO INTERMEDIATE THICKENER
NC
10"x3"
10"x3"
ES
3510-SL-
-R1A-6"-N
ES
3510-SL-1481-R1A-3"-N
3510-SL-1478-R1A-3"-N
3510-PG-1024-C1A-6"-N
3510-SL-1479-R1A-3"-N
3510-WR-1851-C1A-8"-N
3510-WR-1849-C1A-2"-N
3510-SL-1464-R1A-8"-N
3510-WR-1847-C1A-4"-N
V
3510-WR-1881-C1A-3"-N
3510-SL-1576-C1B-4"-N
3510-SL-1482-R1A-3"-N
3510-WR-1850-C1A-2"-N
D
4
F
B
A
3
2
1 5 6 8
E
7
C
REV.
APPROVED
CHK.
DES.
REV. DATE REVISION DESCRIPTION
CLIENT
LEAD ENGINEER
SCALE DRAWING NUMBER
CHECK DESIGN CHECK DRAWING
DESIGNED BY DRAWN BY
APPROVAL DATE
APPROVAL DATE
APPROVED
CHK.
DES.
REV. DATE REVISION DESCRIPTION REFERENCE DRAWING No.
1:100
0
1:200
5m
10m
0
5m
10m
15m
20m
1:500
10m
0
20m
30m
40m
50m
1:1000
0
100m
50m
1:20
0
0.5m
1m
1.5m
2m
0
1:25
0.5m
1m
1.5m
1:33
1/3
2.5m
2m
0
1m
2m
3m
0
1:50
1m
2m
3m
4m
5m
CAD FILE NAME: P:0CAD000SPEM**
MODEL UPDATED:
DWG. FILE UPDATED:
MANUAL CHANGES MADE: YES NO YES NO YES NO
PROJECT MANAGER
ENGINEERING MANAGER
AREA PROJECTENGINEER
REFERENCE DRAWINGS
SAFETY SHARE:
APPROVAL DATE
CONTRACT
NO.
SAFETY SHARE :
BA6CVA1.IGR
NOTICE: THIS DRAWING HAS NOT BEEN PUBLISHED AND IS THE SOLE
PROPERTY OF FLUOR AND IS LENT TO THE BORROWER FOR THEIR
CONFIDENTIAL USE ONLY, AND IN CONSIDERATION OF THE LOAN OF THIS
DRAWING, THE BORROWER PROMISES AND AGREES TO RETURN IT UPON
REQUEST AND AGREES THAT IT WILL NOT BE REPRODUCED, COPIED LENT
OR OTHERWISE DISPOSED OF DIRECTLY OR INDIRECTLY, NOR USED FOR
ANY OTHER PURPOSE OTHER THAN WHICH IT IS FURNISHED.
NONE
Apr 2011
240K-C2-
SELECT
C2-3610-PP-008/009
TO FLOOR
MISMATCH
MISMATCH
MISMATCH
MISMATCH
MISMATCH
MISMATCH
MISMATCH
MISMATCH
MISMATCH
MISMATCH
MISMATCH
3510
01401
HY
RSP
3510-PG-1023-C1A-6"-N
3510-WR-1915-C1A-4"-N
3510-SL-1476-R1A-12"-N
3510-SL-1481-R1A-3"-N
3510-SL-1480-R1A-3"-N
T3
T3
C2-3510-PP-612
C2-3510-PP-611
SIZE:
MATERIAL:
MOTOR:
C2-3510-PP-611
MO INTERMEDIATE THICKENER UNDERFLOW PUMP NO.1
SIZE:
MATERIAL:
MOTOR:
C2-3510-PP-612
MO INTERMEDIATE THICKENER UNDERFLOW PUMP NO.2
AFD
AFD
D
4
F
B
A
3
2
1 5 6 8
E
7
C
REV.
APPROVED
CHK.
DES.
REV. DATE REVISION DESCRIPTION
CLIENT
LEAD ENGINEER
SCALE DRAWING NUMBER
CHECK DESIGN CHECK DRAWING
DESIGNED BY DRAWN BY
APPROVAL DATE
APPROVAL DATE
APPROVED
CHK.
DES.
REV. DATE REVISION DESCRIPTION REFERENCE DRAWING No.
1:100
0
1:200
5m
10m
0
5m
10m
15m
20m
1:500
10m
0
20m
30m
40m
50m
1:1000
0
100m
50m
1:20
0
0.5m
1m
1.5m
2m
0
1:25
0.5m
1m
1.5m
1:33
1/3
2.5m
2m
0
1m
2m
3m
0
1:50
1m
2m
3m
4m
5m
CAD FILE NAME: P:0CAD000SPEM**
MODEL UPDATED:
DWG. FILE UPDATED:
MANUAL CHANGES MADE: YES NO YES NO YES NO
PROJECT MANAGER
ENGINEERING MANAGER
AREA PROJECTENGINEER
REFERENCE DRAWINGS
SAFETY SHARE:
APPROVAL DATE
CONTRACT
NO.
SAFETY SHARE :
BA6CVA1.IGR
NOTICE: THIS DRAWING HAS NOT BEEN PUBLISHED AND IS THE SOLE
PROPERTY OF FLUOR AND IS LENT TO THE BORROWER FOR THEIR
CONFIDENTIAL USE ONLY, AND IN CONSIDERATION OF THE LOAN OF THIS
DRAWING, THE BORROWER PROMISES AND AGREES TO RETURN IT UPON
REQUEST AND AGREES THAT IT WILL NOT BE REPRODUCED, COPIED LENT
OR OTHERWISE DISPOSED OF DIRECTLY OR INDIRECTLY, NOR USED FOR
ANY OTHER PURPOSE OTHER THAN WHICH IT IS FURNISHED.
NONE
Apr 2011
240K-C2-
VENDOR
VENDOR
3510
01582
HS
3510
01503
AIT
3510
01583
II
3510
01503
AE
3510
01501
LE
3510
01502
LE
3510
01581
HS
3510
01502
LIT
3510
01501
LIT
3510
01583
XA
3510
01583
HS
3510
01502
LI
3510
01582
XA FAULT
3510
01582
II
3510
01503
AI
3510
01581
XA FAULT
3510
01581
II 3510
01501
LIC
3510
01585
XA FAULT
3510
01585
II
3510
01585
HS
3510
01513
AIT
3510
01513
AI
3510
01513
AE
3510
01584
XA FAULT
3510
01511
LE
3510
01584
II
3510
01512
LE
3510
01584
HS
3510
01512
LIT
3510
01511
LIT
3510
01511
LIC
3510
01512
LI
3510
01586
HS
3510
01586
XA
3510
01586
II
MIN.
MIN.
MO 2ND CLEANER TAILING
MO 2ND CLEANER FLOTATION
CELLS, C2-3510-CF-735
2510 3500-25J-016
MO 2ND CLEANER TAILING
MO 2ND CLEANER FLOTATION
CELLS, C2-3510-CF-735
2509 3500-25J-016
J/SP
J/SP
H, P2
L, P2
VENDOR
VENDOR
VENDOR
J/SP
J/SP
ORP
VENDOR
H, P2
L, P2
VENDOR
VENDOR
ORP
FAULT
J/SP
FAULT
J/SP
C2-3510-LA-617
C2-3510-CF-732
12"
12"
2"x1"
2"x1"
3510
01501 A
LV
+
3510
01501 B
LV
+
C2-3510-CF-731
2"x1-1/2"
2"x1/2"
C2-3510-CF-733
12"
12"
3510
01511 A
LV
+
3510
01511 B
LV
+
2"x1"
C2-3510-CF-734
2"x1"
SPENT PROCESS GAS
EQUALIZATION HEADER
2505 3500-25J-016
SIZE:
MOTOR:
C2-3510-CF-731
MO 2ND CLEANER FLOTATION CELL NO.1
SIZE:
MOTOR:
C2-3510-CF-732
MO 2ND CLEANER FLOTATION CELL NO.2
SIZE:
MOTOR:
C2-3510-CF-733
MO 2ND CLEANER FLOTATION CELL NO.3
SIZE:
MOTOR:
C2-3510-CF-734
MO 2ND CLEANER FLOTATION CELL NO.4
SIZE:
C2-3510-LA-617
MO 2ND CLEANER FLOTATION LAUNDER
MO 2ND CLEANER CONC.
MO 2ND CLEANER FLOTATION
LAUNDER, C2-3510-LA-617
2507 3500-25J-016
T1
T1
T1
T1
3510-WR-1804-C1A-4"-N
3510-PG-1025-C1A-10"-N
T1
MO 1ST CLEANER CONC.
2ND CLEANER FLOTATION
FEED PUMPS,
2512 3500-25J-016
3510-SL-1494-R1A-4"-N
SLOPE
T1
3510-PG-1026-C1A-6"-N
3510-PG-1027-C1A-6"-N
3510
01504
FE
+
3510
01504
FIT
3510
01504
FIC
1-1/2"x1" 1-1/2"x1"
3510
01514
FE
+
3510
01514
FIT
3510
01514
FIC
1-1/2"x1" 1-1/2"x1"
3510-N2G-1012-C1D-1-1/2"-N
3510-N2G-1011-C1D-1-1/2"-N
NITROGEN
NITROGEN VAPORIZER,
C2-3510-ZM-528
2843 3500-25J-041
NITROGEN
NITROGEN VAPORIZER,
C2-3510-ZM-528
2844 3500-25J-041
ES
ES
AG
KM
LT
ISSUED FOR CLIENT REVIEW
22-Dec-11
B
RP
ISSUED FOR COMBINED REVIEW
30-Jun-11
A
12/22/2011
K. MUNDY
A. GUNSON
A. REGNAULT
L. TAMELIN
12/22/2011
11:58:20
AM
WBS: 3510
B
PIPING AND INSTRUMENTATION DIAGRAM
MOLY PLANT
3500-25J-015
MO SECOND CLEANER CELLS 1 TO 4
3510
01514
FV
+
3510
01504
FV
+
MO CLEANER SCAV. TAIL.
MO CLEANER SCAV. TAILING
PUMP, C2-3510-PP-615/616
2527 3500-25J-013
V
V
V
V
FC
FC
C2-3510-PP-622/623
3510-SL-1473-R1A-6"-N
3510-WR-1852-C1A-2"-N
3510-WR-1853-C1A-2"-N
3510-WR-1854-C1A-2"-N
3510-WR-1855-C1A-2"-N
3510-WR-1856-C1A-2"-N
3510-WR-1857-C1A-2"-N
3510-SL-1521-R1A-6"-N
3510-SL-1483-R1A-4"-N
3510-SL-1484-R1A-4"-N
3510-SL-1485-R1A-4"-N
3510-SL-1486-R1A-4"-N
3510-SL-1520-R1A-6"-N
PROCESS WATER
3350 3900-25J-016
CONC. CLARIFIER O/F
CLARIFIER O/F TRANSFER
PUMPS, C2-3610-PP-008/009
4142 3600-25J-004
3610-WR- -C1A-4"-N
T1
T3
BY
VENDOR
T3
T3
T3
T1 T1 T1
R1A
3510
01609
XA
3510
01619
XA
3510
01619
ZS
3510
01609
ZS
OP/CL
3510
01611
FIT
3510
01611
FIC
3510
01637
ZS
3510
01639
XA
3510
01639
ZS
3510
01629
XA
3510
01618
ZS
OP/CL
3510
01629
ZS
OP/CL
3510
01628
XA
3510
01628
ZS
3510
01627
XA
3510
01637
XA
3510
01627
ZS
3510
01638
XA
3510
01638
ZS
OP/CL
3510
01618
XA
3510
01682
HS
J/SP
3510
01620
FI
MASS
FLOW
3510
01610
LIC
3510
01315
PI
L, P2
3510
01614
FI
3510
01620
DIT
3510
01685
HS
J/SP
3510
01610
LE
3510
01601
LIC
3510
01605
PI
3510
01681
HS
J/SP
3510
01686
HS
J/SP
3510
01607
XA
3510
01604
FI
3510
01608
ZS
OP/CL
3510
01620
FI
3510
01620
FIT
3510
01620
FY
3510
01601
LIT
3510
01681
II
3510
01612
PI
3510
01685
XA
3510
01620
DX
3510
01610
LT
3510
01686
II
3510
01632
PI
3510
01610 A
LI
3510
01630
LIC
3510
01681
XA
3510
01635
PIT
3510
01603
AI
3510
01602
LIT
3510
01602
LI
3510
01613
PI
3510
01685
II
3510
01635
PI
L, P2
3510
01634
FIT
3510
01634
FI
3510
01625
PIT
3510
01683
HS
J/SP
3510
01684
XA
3510
01684
HS
J/SP
3510
01620
DI
3510
01620
DE
3510
01625
PI
3510
01624
FIT
3510
01624
FI
3510
01640
FIT
3510
01640
FI
3510
01640
DX
3510
01695
XA
3510
01633
PI
3510
01695
II
3510
01640
DE
3510
01640
DI
3510
01640
DIT
3510
01617
ZS
3510
01686
XA
3510
01640
FI
3510
01695
HS
J/SP
3510
01607
ZS
OP/CL
3510
01684
II
3510
01640
FQI
3510
01630
LE
3510
01608
XA
3510
01696
HS
J/SP
3510
01640
FY
3510
01630
LT
3510
01630 A
LI
3510
01615
PIT
OP/CL
3510
01601
LE
MIN.
M
3510
01602
LE
M
3510
01614
FIT
M
3510
01603
AIT
M
3510
01617
XA
3510
01605
PIT
M
3510
01604
FIT
3510
01696
II
M
3510
01603
AE
3510
01696
XA
3510
01682
XA
3510
01683
XA
3510
01682
II
3510
01683
II
MIN
MO 1ST CLEANER CONC.
MO 1ST CLEANER FLOTATION
LAUNDER, C2-3510-LA-615
2499 3500-25J-011
MO 2ND CLEANER TAILING
MO 1ST CLEANER
CONDITIONING TANK,
2485 3500-25J-007
SPENT PROCESS GAS
EQUALIZATION HEADER
2505 3500-25J-015
MO 2ND CLEANER TAIL.
MO 2ND CLEANER FLOTATION
CELL, C2-3510-CF-734
2509 3500-25J-015
MO 2ND CLEANER TAIL.
MO 2ND CLEANER FLOTATION
CELL, C2-3510-CF-734
2510 3500-25J-015
MO 1ST CLEANER CONC.
MO 2ND CLEANER
FLOTATION, C2-3510-CF-731
2512 3500-25J-015
MO 2ND CLEANER CONC.
MO 2ND CLEANER FLOTATION
LAUNDER, C2-3510-LA-617,
2507 3500-25J-015
PROCESS WATER
2508 3900-25J-016
NITROGEN
NITROGEN VAPORIZER,
C2-3510-ZM-528
2834 3500-25J-041
MO 2ND CLEANER CONC.
MO CLEANER SCAV. CONC.
PUMPBOX, C2-3510-BX-606
2526 3500-25J-013
OP/CL
OP/CL
OP/CL
OP/CL
OP/CL
VENDOR
L, P2
LL, P1
MIN
L, P2
LL, P1
FROTHER PADDLE
MOTOR
MIN
L, P2
TO FLOOR MIN
LL, P1
L, P2
H, P2
MIN.
BY
VENDOR
ORP
MIN
BY
VENDOR
L, P2
LL, P1
BY
VENDOR
L, P2
LL, P1
BY
VENDOR
L, P2
BY
VENDOR
LL, P1
L, P2
H, P2
BY
VENDOR
BY
VENDOR
MIN
MASS
FLOW
MASS
FLOW
AFD
FAULT
AFD
FAULT
FAULT
AFD
(LAUNDER)
FAULT
MIN.
SPLIT RANGE
TO FLOOR
MIN
TO FLOOR
MIN
AFD
MIN
FAULT
VENDOR
FAULT
H, P2
L, P2
MIN
(LAUNDER)
C2-3510-TK-603
FAULT FAULT
3510
01611
FV
+
1"
BA-
N2
N1
N4
C2-3510-CF-735
3510-WR-1860-C1A-1"-N
3510
01637
XV
+
FI
1/2" BA-
FI
3510-SL-1494-R1A-4"-N
1-1/2" PL-
1-1/2" PL-
1-1/2" PL-
C2-3510-CF-736
ES
3510
01634
FE
+
3510-WR-1861-C1A-1"-N
3510
01601 B
LV
+
3"
1-1/2" BA-
C2-3510-BX-609
3510-PG-1029-C1A-6"-N
SIZE:
MATERIAL:
MOTOR:
C2-3510-PP-624
MO 2ND CLEANER TAILING PUMP NO. 1
3510
01639
XV
+
SIZE:
MOTOR:
C2-3510-CF-737
MO 2ND CLEANER FLOTATION CELL NO.7
N5
3510
01601 A
LV
+
BA-
3510-WG-1043-C1A-4"-N
N4
SIZE:
MATERIAL:
MOTOR:
C2-3510-PP-623
MO 2ND CLEANER CONCENTRATE FEED PUMP NO. 2
SIZE:
MATERIAL:
CAPACITY:
TRIM:
C2-3510-BX-609
MO 2ND CLEANER FEED PUMPBOX
AG
KM
LT
ISSUED FOR CLIENT REVIEW
22-Dec-11
B
RP
ISSUED FOR COMBINED REVIEW
30-Jun-11
A
12/22/2011
K. MUNDY
A. GUNSON
A. REGNAULT
L. TAMELIN
12/22/2011
2:24:49
PM
WBS: 3510
B
PIPING AND INSTRUMENTATION DIAGRAM
MOLY PLANT
3500-25J-016
MO SECOND CLEANER CELLS 5 TO 7
C2-3510-PP-623
3510
01604
FE
+
N1
3" KG-
3510
01627
XV
+
3510
01629
XV
+
N6
C2-3510-BX-615
SIZE:
MATERIAL:
CAPACITY:
TRIM:
C2-3510-BX-615
MO 2ND CLEANER TAILING PUMPBOX
BA-
3510-SL-1507-R1A-6"-N
3510-WR-1307-C1A-2"-N
V
N12
V
3510
01628
XV
+
C2-3510-PP-624
3510-PG-1025-C1A-10"-N
N5
3510
01619
XV
+
FI
3510
01624
FE
+
3" KG-
3510-PG-1030-C1A-4"-N
FI
1-1/2" PL-
3510
01608
XV
+
ES
3510
01614
FE
+
3" KG-
SIZE:
MOTOR:
C2-3510-CF-735
MO 2ND CLEANER FLOTATION CELL NO.5
3"
ES
1/2" BA-
ES
3510-WR-1859-C1A-1"-N
3510-SL-1504-R1A-8"-N
3510
01617
XV
+
3510
01640
FE
+
SIZE:
MATERIAL:
MOTOR:
C2-3510-PP-625
MO 2ND CLEANER TAILING PUMP NO. 2
3510
01609
XV
+
N2
C2-3510-PP-625
1-1/2" PL-
FI
ES
C2-3510-PP-622
SIZE:
MATERIAL:
MOTOR:
C2-3510-PP-622
MO 2ND CLEANER FEED PUMP NO. 1
1-1/2" PL-
3510-WF-1084-C1A-1-1/2"-N
N9
3510
01618
XV
+
C2-3510-CF-737
V1
ES
FI
1-1/2" PL-
N9
1" BA-
3510
01638
XV
+
3510-SL-1506-R1A-6"-N
BA-
1"
BA-
3510-SL-1493-R1A-6"-N
1-1/2" PL-
1-1/2" PL-
3510-RS-1064-S1B-1"-N
ES
3510
01607
XV
+
1-1/2" PL-
3510-SL-1492-R1A-6"-N
ES
FI
3510
01620
FE
+
SIZE:
MOTOR:
C2-3510-CF-736
MO 2ND CLEANER FLOTATION CELL NO.6
3510-SL-1495-R1A-4"-N
3510-N2G-1013-C1D-1-1/2"-N
3510
01611
FE
+
ES
D
4
F
B
A
3
2
1 5 6 8
E
7
C
REV.
APPROVED
CHK.
DES.
REV. DATE REVISION DESCRIPTION
CLIENT
LEAD ENGINEER
SCALE DRAWING NUMBER
CHECK DESIGN CHECK DRAWING
DESIGNED BY DRAWN BY
APPROVAL DATE
APPROVAL DATE
APPROVED
CHK.
DES.
REV. DATE REVISION DESCRIPTION REFERENCE DRAWING No.
1:100
0
1:200
5m
10m
0
5m
10m
15m
20m
1:500
10m
0
20m
30m
40m
50m
1:1000
0
100m
50m
1:20
0
0.5m
1m
1.5m
2m
0
1:25
0.5m
1m
1.5m
1:33
1/3
2.5m
2m
0
1m
2m
3m
0
1:50
1m
2m
3m
4m
5m
CAD FILE NAME: P:0CAD000SPEM**
MODEL UPDATED:
DWG. FILE UPDATED:
MANUAL CHANGES MADE: YES NO YES NO YES NO
PROJECT MANAGER
ENGINEERING MANAGER
AREA PROJECTENGINEER
REFERENCE DRAWINGS
SAFETY SHARE:
APPROVAL DATE
CONTRACT
NO.
SAFETY SHARE :
BA6CVA1.IGR
NOTICE: THIS DRAWING HAS NOT BEEN PUBLISHED AND IS THE SOLE
PROPERTY OF FLUOR AND IS LENT TO THE BORROWER FOR THEIR
CONFIDENTIAL USE ONLY, AND IN CONSIDERATION OF THE LOAN OF THIS
DRAWING, THE BORROWER PROMISES AND AGREES TO RETURN IT UPON
REQUEST AND AGREES THAT IT WILL NOT BE REPRODUCED, COPIED LENT
OR OTHERWISE DISPOSED OF DIRECTLY OR INDIRECTLY, NOR USED FOR
ANY OTHER PURPOSE OTHER THAN WHICH IT IS FURNISHED.
NONE
Apr 2011
240K-C2-
GLAND SEAL WATER
2528 3900-25J-016
FI
FI
FI
3510-SL-1505-R1A-8"-N
FI
FI
NAHS SOLUTION
NAHS INJECTOR NO.10,
C2-3510-ZM-636
3575 3500-25J-037
CONTINUE
V
V
NAHS SOLUTION
NAHS INJECTOR NO.11,
C2-3510-ZM-637
3578 3500-25J-037
3510
01620
FQI
MASS
FLOW
3510
01623
AE
3510
01623
AIT
3510
01623
AI
H,P2
H2S
ES
3510-WR-1936-C1A-2"-N
3510-WR-1858-C1A-2"-N
3510-RS-1064-S1B-1"-N
3510-WR- -C1A-2"-N
3510-WG-1085-C1A-1"-N
3510-WG-1086-C1A-1-1/2"-N
3510-SL-1531-R1A-3"-N
3510-SL-1498-R1A-6"-N
3510-SL-1497-R1A-6"-N
3510-SL-1496-R1A-6"-N
3510-SL-1499-R1A-8"-N
3510-SL-1450-R1A-8"-N
3510-WG-1087-C1A-1"-N
C2-3510-LA-617
SIZE:
C2-3510-LA-617
MO 2ND CLEANER FLOTATION LAUNDER
3510-RS-1063-S1B-1"-N
T3
AFD
T3
MIN
3510
01782
HS
J/SP
3510
01710
LE
3510
01705
PIT
3510
01711
LE
3510
01711
LIC
3510
01781
XA
NOTE 2
3510
01710 A
LI
3510
01702
FIT H, P2
L, P2
3510
01710
LIC
3510
01720
PIT
3510
01715
PI
3510
01715
PIT
3510
01781
II
3510
01728
AIT
3510
01711
LIT
3510
01704
FI L, P2
LL, P1
3510
01728
AI
3510
01728
AE
H2S
3510
01705
PI L, P2
3510
01702
FIC
OP/CL
3510
01725
FIC
3510
01714
FIT
M
M
MIN
3510
01713
PI
3510
01781
HS
J/SP
3510
01723
PI
3510
01710
LT
3510
01712
PI
3510
01725
FIT
3510
01704
FIT
3510
01714
FI
M
3510
01782
II
3510
01720
PI
3510
01722
PI
3510
01782
XA
3510
01709
XA
3510
01719
XA
3510
01709
ZS
OP/CL
3510
01719
ZS
OP/CL
3510
01725
ZS
3510
01725
XA
OP/CL
3510
01724
XA
3510
01724
ZS
3510
01726
XA
3510
17183
XA FAULT
3510
17183
II
3510
17183
HS
3510
01726
ZS
3510
01707
ZS
3510
01707
XA
OP/CL
3510
01717
ZS
OP/CL
3510
01717
XA
3510
01718
XA
3510
01718
ZS
OP/CL
3510
01727
XA
3510
01727
ZS
3510
01708
ZS
OP/CL
3510
01708
XA
BY
VENDOR
MO 3RD CLEANER CONC.
4TH CLEANER FEED
PUMPBOX, C2-3510-BX-611
2229 3500-25J-021
SPENT PROCESS GAS
EQUALIZATION HEADER
2228 3500-25J-021
NAHS SOLUTION
NAHS INJECTOR NO. 3,
C2-3540-ZM-665
2225 3500-25J-037
MO 4TH CLEANER TAILING
4TH CLEANER COLUMN CELL,
C2-3510-CM-602
2226 3500-25J-021
NASIO3 SOLUTION
NASIO3 INJECTOR,
C2-3510-ZM-645
2227 3500-25J-032
PLANT AIR
2235 3900-25J-021
MO INTERMEDIATE
MO INTERMEDIATE
THICKENER U/F PUMPS,
2224 3500-25J-014
MO 3RD CLEANER TAILING
MO CLEANER SCAVENGER
FLOTATION CELL,
2230 3500-25J-012
MIN
BY
VENDOR
O/F
MIN
BY
VENDOR
NOTE 2
MIN
(TYPE FOR ALL)
MIN
MIN
FAULT
H, P2
L, P2
MIN
TO DRAIN
24''
MAN WAY
TO DRAIN
H, P2
L, P2
LL, P2
L, P2
LL, P1
H, P2
J/SP
OP/CL
FAULT
NOTES:
1. THREE NOZZLES
2. MAINTAIN MINIMUM DISTANCE BETWEEN
VALVE AND FITTINGS OR FLANGES.
NOTE
1
TO FLOOR
BY
VENDOR
L, P2
MIN
AFD
1"
3"
1"
2"x1"
1"
V
1"
1"
FI
FI
3510
01718
XV
+
V
FI
V
V
3510
01707
XV
+
1-1/2"
3510
01708
XV
+
FI
V
1-1/2"
2"x1"
V
C2-3510-CM-601
1"
3510
01726
XV
+
V
3510
01702
FE
+
FI
C2-3510-PP-626
3510
01704
FE
+
FI
C2-3510-BX-610
1-1/2"
SIZE:
MATERIAL:
CAPACITY:
TRIM:
C2-3510-BX-610
MO 3RD CLEANER FEED PUMPBOX
1"
3510
01725
XV
+
FI
1"x1/2"
4"x2-1/2"
1-1/2"
FI
1"
C2-3510-TK-615
V
C2-3510-PP-627
3510
01711
LV
+
V
3510
01724
XV
+
3510
01702
FV
+
V
V
V
2"x1"
1"
C2-3510-AG-615
3510
01717
XV
+
1/2"
V
SIZE:
C2-3510-CM-601
MO 3RD CLEANER COLUMN CELL
6"
FI
FC
V
1"
3510
01719
XV
+
1-1/2"
FI
1"
3510
01709
XV
+
1"
3510
01727
XV
+
2"x1"
8"x6"
3510
01725
FV
+
V
1"
V
3510
01714
FE
+
3510
01725
FE
+
1"x1/2"
V
V
V
V
3510-SL-1515-R1A-12"-N
3510-WF-1426-C1A-6"-N
SIZE:
MATERIAL:
CAPACITY:
TRIM:
C2-3510-TK-615
MO INTERMEDIATE THICKENER U/F ATTRITOR TANK
V
V
ES
V
3510-AP-1262-C1A-1"-N
3510-SL-1527-R1A-8"-N
SIZE:
MATERIAL:
MOTOR:
C2-3510-AG-615
MO 2ND CLEANER THICKENER U/F ATTRITOR TANK AGITATOR
3510-PG-1031-C1A-10"-N
3510-WR-1863-C1A-2-1/2"-N
3510-WG-1044-C1A-1-1/2"-N
SIZE:
MATERIAL:
MOTOR:
C2-3510-PP-627
MO 3RD CLEANER FEED PUMP NO. 2
V
3510-RS-1016-C1D-2"-N
V
3510-RS-1065-S1B-1"-N
3510-WG-1088-C1A-1"-N
3510-SL- -R1A-8"-N
ES
3510-SL-1518-R1A-10"-N
V
3510-SL-1514-R1A-12"-N
ES
3510-SL-1517-R1A-8"-N
3510-SL-1481-R1A-3"-N
SIZE:
MATERIAL:
MOTOR:
C2-3510-PP-626
MO 3RD CLEANER FEED PUMP NO. 1
V
3510-PG-1034-C1A-6"-N
3510-SL-1512-R1A-14"-N
3510-SL-1513-R1A-14"-N
3510-WR-1310-C1A-4"-N
3510-SL-1508-R1A-4"-N
ES
V
V
3510-WR-1862-C1A-4"-N
AG
KM
LT
ISSUED FOR CLIENT REVIEW
22-Dec-11
B
RP
ISSUED FOR COMBINED REVIEW
30-Jun-11
A
12/22/2011
K. MUNDY
A. GUNSON
A. REGNAULT
L. TAMELIN
12/22/2011
12:04:02
PM
WBS: 3510
B
PIPING AND INSTRUMENTATION DIAGRAM
MOLY PLANT
3500-25J-017
THIRD CLEANER COLUMN FLOTATION
3510-PG-1032-C1A-4"-N
3510-PG-1033-C1A-4"-N
D
4
F
B
A
3
2
1 5 6 8
E
7
C
REV.
APPROVED
CHK.
DES.
REV. DATE REVISION DESCRIPTION
CLIENT
LEAD ENGINEER
SCALE DRAWING NUMBER
CHECK DESIGN CHECK DRAWING
DESIGNED BY DRAWN BY
APPROVAL DATE
APPROVAL DATE
APPROVED
CHK.
DES.
REV. DATE REVISION DESCRIPTION REFERENCE DRAWING No.
1:100
0
1:200
5m
10m
0
5m
10m
15m
20m
1:500
10m
0
20m
30m
40m
50m
1:1000
0
100m
50m
1:20
0
0.5m
1m
1.5m
2m
0
1:25
0.5m
1m
1.5m
1:33
1/3
2.5m
2m
0
1m
2m
3m
0
1:50
1m
2m
3m
4m
5m
CAD FILE NAME: P:0CAD000SPEM**
MODEL UPDATED:
DWG. FILE UPDATED:
MANUAL CHANGES MADE: YES NO YES NO YES NO
PROJECT MANAGER
ENGINEERING MANAGER
AREA PROJECTENGINEER
REFERENCE DRAWINGS
SAFETY SHARE:
APPROVAL DATE
CONTRACT
NO.
SAFETY SHARE :
BA6CVA1.IGR
NOTICE: THIS DRAWING HAS NOT BEEN PUBLISHED AND IS THE SOLE
PROPERTY OF FLUOR AND IS LENT TO THE BORROWER FOR THEIR
CONFIDENTIAL USE ONLY, AND IN CONSIDERATION OF THE LOAN OF THIS
DRAWING, THE BORROWER PROMISES AND AGREES TO RETURN IT UPON
REQUEST AND AGREES THAT IT WILL NOT BE REPRODUCED, COPIED LENT
OR OTHERWISE DISPOSED OF DIRECTLY OR INDIRECTLY, NOR USED FOR
ANY OTHER PURPOSE OTHER THAN WHICH IT IS FURNISHED.
NONE
Apr 2011
240K-C2-
OP/CL
C2-3510-PP-611/612
3510-WR-1312-C1A-2"-N
3510-WR-1308-C1A-2"-N
MISMATCH
V
V
C2-3510-CF-721
MISMATCH
MISMATCH
MISMATCH
V
V
V
V V
V
3510-WR-1084-C1A-4"-N
3510-WR-1310-C1A-4"-N
V
FC
ES
?
MISMATCH
MISMATCH
MISMATCH
MISMATCH
3510
01733
AIT
3510
01733
AI
3510
01733
AE
H, P2
ES
H2S
THICKENER U/F PUMPS
MISMATCH
3510-WR-1865-C1A-2-1/2"-N
3510-WR-1864-C1A-2-1/2"-N
3510-SL-1516-R1A-3"-N
3510
PCV
+
GLAND SEAL WATER
2972 3900-25J-023
PROCESS WATER
2233 3900-25J-016
FRESH WATER
4239 5100-25J-015
T8
T3
T3
AFD
MIN
3510
02183
II
3510
02128
LIT
3510
02183
HS
J/SP
3510
02128
LE
3510
02128
LI
3510
02183
XA FAULT
3510
02118
ZS
OP/CL
3510
02181
HS
J/SP
3510
02109
ZS
OP/CL
3510
02118
XA
3510
02113
PI
MISMATCH
NOTE 2
3510
02102
FIT H, P2
L, P2
3510
02119
XA
MISMATCH
3510
02117
XA
OP/CL
3510
02109
XA
3510
02181
II
3510
02102
FIC
MIN 3510
02182
XA
3510
02115
PIT
3510
02182
II
M
3510
02122
PI
3510
02182
HS
J/SP
3510
02114
FI
3510
02126
XA
3510
02181
XA
3510
02120
PI
3510
02115
PI
3510
02111
LIC
3510
02120
PIT
3510
02104
FIT
3510
02124
ZS
3510
02103
FIT
3510
02124
XA
3510
02105
PI L, P2
3510
02111
LE
3510
02105
PIT
3510
02108
XA
3510
02110 A
LI
3510
02112
PI
3510
02117
ZS
OP/CL
3510
02110
LIC
3510
02110
LE
M
3510
02125
XA
3510
02110
LT
M
3510
02108
ZS
OP/CL
3510
02107
XA
MISMATCH
3510
02125
ZS
OP/CL
3510
02114
FIT
3510
02127
ZS
OP/CL
3510
02103
FIC
3510
02127
XA
3510
02107
ZS
3510
02126
ZS
OP/CL
3510
02104
FI L, P2
LL, P1
3510
02123
PI
3510
02119
ZS
OP/CL
3510
02111
LIT
R1A
BY
VENDOR
MISMATCH
PLANT AIR
2602 3900-25J-021
SPENT PROCESS GAS
EQUALIZATION HEADER
2603 3500-25J-022
MO 4TH CLEANER CONC.
5TH CLEANER FEED
PUMPBOX, C2-3510-BX-612
2606 3500-25J-022
MO 5TH CLEANER TAIL.
5TH CLEANER COLUMN CELL,
C2-3510-CM-603
2608 3500-25J-022
MO COLUMN SUMP CONT.
MO INTERMEDIATE
THICKENER FEED BOX,
2543 3500-25J-014
SPENT PROCESS GAS
EQUALIZATION HEADER
2228 3500-25J-017
MO 4TH CLEANER TAILING
3RD CLEANER FEED
PUMPBOX, C2-3510-BX-610
2229 3500-25J-017
MO 3RD CLEANER TAIL.
3TH CLEANER COLUMN CELL,
C2-3510-CM-601
2226 3500-25J-017
NAHS SOLUTION
NAHS INJECTOR NO. 12,
C2-3510-ZM-638
3564 3500-25J-037
MIN
24''
MAN WAY
AFD
MIN
TO DRAIN
MIN
L, P2
BY
VENDOR
TO FLOOR
H, P2
L, P2
NOTE
1
FAULT
C2-3510-BX-616
H, P2
L, P2
LL, P1
MISMATCH MISMATCH
NOTES:
1. THREE NOZZLES
2. MAINTAIN MINIMUM DISTANCE BETWEEN
VALVE AND FITTINGS OR FLANGES.
MIN
MIN
FAULT
MIN
(TYPE FOR ALL)
NOTE 2
BY
VENDOR
L, P2
LL, P1
MIN
OP/CL
H, P2
L, P2
LL, P2
TO DRAIN
O/F
BY
VENDOR
3510-WR-1313-C1A-2"-N
V
V
V V
V
V
V
V
V
3510-WR-1315-C1A-4"-N
3510-RS-1066-S1B-1"-N
3510-WR-1804-C1A-2"-N
3510
02117
XV
+
ES
V
3510-SL-1525-R1A-10"-N
SIZE:
MATERIAL:
MOTOR:
C2-3510-PP-629
MO 4TH CLEANER FEED PUMPS NO. 2
V
3510-WG-1045-C1A-1-1/2"-N
3510-PG-1031-C1A-10"-N
1"
V
V
3510
02108
XV
+
V
1/2"
3510
02111
LV
+
1-1/2"
V
V
1"
V
V
3510
02118
XV
+
3510
02102
FE
+
V
3510
02103
FE
+
V
1"x1/2"
3510
02103
FV
+
3510-WR-1867-C1A-2-1/2"-N
1"
V
3510
02127
XV
+
8"x6"
FI 1-1/2"
3"
V
3510
02107
XV
+
V
C2-3510-PP-621
AG
KM
LT
ISSUED FOR CLIENT REVIEW
22-Dec-11
B
RP
ISSUED FOR COMBINED REVIEW
30-Jun-11
A
12/22/2011
K. MUNDY
A. GUNSON
A. REGNAULT
L. TAMELIN
12/22/2011
1:35:54
PM
WBS: 3510
B
PIPING AND INSTRUMENTATION DIAGRAM
MOLY PLANT
3500-25J-021
FOURTH CLEANER COLUMN FLOTATION
SIZE:
MATERIAL:
MOTOR:
C2-3510-PP-621
MO FLOTATION COLUMN SUMP PUMP
FI
3510
02109
XV
+
V
V
2"x1"
FI
FI
1-1/2"
3510
02125
XV
+
FI
V
1"
1"
C2-3510-CM-602
3510-AP-1238-C1A-1"-N
V
3510-WR-1866-C1A-4"-N
FI
3510
02124
XV
+
3"
3510-SL-1537-R1A-14"-N
3510
02119
XV
+
V
3510
02126
XV
+
1"
1"
1"
1"
3510-PG-1036-C1A-6"-N
V
2"x1"
V
SIZE:
MATERIAL:
MOTOR:
C2-3510-PP-628
MO 4TH CLEANER FEED PUMPS NO. 1
1"
V
3510-SL-1527-R1A-8"-N
1-1/2"
1"
FC
ES
3510
02102
FV
+
3510-SL-1524-R1A-10"-N
V
C2-3510-PP-629
V
3510-SL-1522-R1A-12"-N
2"x1"
V
6"
3510
02114
FE
+
FI
1-1/2"
3510
02104
FE
+
SIZE:
C2-3510-CM-602
MO 4TH CLEANER COLUMN CELL
3510-WG-1089-C1A-1"-N
FI
C2-3510-PP-628
ES
4"x2-1/2"
1"x1/2"
3510-WR-1315-C1A-4"-N
FI
3510-SL-1523-R1A-12"-N
V
V
SIZE:
MATERIAL:
CAPACITY:
TRIM:
C2-3510-BX-611
MO 4TH CLEANER FEED PUMPBOX
1"
V
C2-3510-BX-611
3510-SL-1528-R1A-10"-N
1"
ES
2"x1"
3510-AP-1238-C1A-1"-N
3510-SL-1527-R1A-8"-N
FI
V
3510-PG-1031-C1A-10"-N
3510-WF-1427-C1A-1"-N
3510-PG-1035-C1A-4"-N
D
4
F
B
A
3
2
1 5 6 8
E
7
C
REV.
APPROVED
CHK.
DES.
REV. DATE REVISION DESCRIPTION
CLIENT
LEAD ENGINEER
SCALE DRAWING NUMBER
CHECK DESIGN CHECK DRAWING
DESIGNED BY DRAWN BY
APPROVAL DATE
APPROVAL DATE
APPROVED
CHK.
DES.
REV. DATE REVISION DESCRIPTION REFERENCE DRAWING No.
1:100
0
1:200
5m
10m
0
5m
10m
15m
20m
1:500
10m
0
20m
30m
40m
50m
1:1000
0
100m
50m
1:20
0
0.5m
1m
1.5m
2m
0
1:25
0.5m
1m
1.5m
1:33
1/3
2.5m
2m
0
1m
2m
3m
0
1:50
1m
2m
3m
4m
5m
CAD FILE NAME: P:0CAD000SPEM**
MODEL UPDATED:
DWG. FILE UPDATED:
MANUAL CHANGES MADE: YES NO YES NO YES NO
PROJECT MANAGER
ENGINEERING MANAGER
AREA PROJECTENGINEER
REFERENCE DRAWINGS
SAFETY SHARE:
APPROVAL DATE
CONTRACT
NO.
SAFETY SHARE :
BA6CVA1.IGR
NOTICE: THIS DRAWING HAS NOT BEEN PUBLISHED AND IS THE SOLE
PROPERTY OF FLUOR AND IS LENT TO THE BORROWER FOR THEIR
CONFIDENTIAL USE ONLY, AND IN CONSIDERATION OF THE LOAN OF THIS
DRAWING, THE BORROWER PROMISES AND AGREES TO RETURN IT UPON
REQUEST AND AGREES THAT IT WILL NOT BE REPRODUCED, COPIED LENT
OR OTHERWISE DISPOSED OF DIRECTLY OR INDIRECTLY, NOR USED FOR
ANY OTHER PURPOSE OTHER THAN WHICH IT IS FURNISHED.
NONE
Apr 2011
240K-C2-
3510-WR-1869-C1A-2-1/2"-N
3510-WR-1868-C1A-2-1/2"-N
3510-SL-1526-R1A-3"-N
3510-SL-1576-C1B-4"-N
3510-SL-1518-R1A-10"-N
3510-WR-1804-C1A-4"-N
3510
PCV
+
GLAND SEAL WATER
4233 3900-25J-016
PROCESS WATER
4234 3900-25J-016
FRESH WATER
4235 5100-25J-015
T3
AFD
T3
MIN
3510
02205
PI L, P2
3510
02282
XA
3510
02209
XA
3510
02210
LE
3510
02219
XA
3510
02218
XA
3510
02205
PIT
3510
02211
LE
3510
02224
XA
3510
02224
ZS
3510
02281
XA
3510
02226
XA
MMISMATCH
3510
02211
LIT
3510
02204
FI L, P2
LL, P1
MIN
3510
02225
XA
3510
02202
FIT H, P2
L, P2
3510
02225
ZS
3510
02208
ZS
OP/CL
3510
02210
LI
3510
02213
PI
3510
02281
HS
J/SP
OP/CL
3510
02227
ZS
OP/CL
3510
02212
PI
3510
02202
FIC
M
3510
02219
ZS
OP/CL
3510
02227
XA
MMISMATCH
3510
02223
PI
3510
02282
II
3510
02203
FIT
3510
02204
FIT
MISMATCH
3510
02214
FI
3510
02211
LIC
3510
02226
ZS
OP/CL
3510
02207
ZS
OP/CL
3510
02207
XA
MISMATCH
3510
02217
ZS
OP/CL
3510
02208
XA
3510
02220
PIT
3510
02215
PI
3510
02215
PIT
3510
02281
II
NOTE 2
3510
02210
LT
3510
02203
FIC
3510
02209
ZS
OP/CL
3510
02218
ZS
OP/CL
3510
02214
FIT
M
M
3510
02220
PI
3510
02210
LIC
3510
02217
XA
3510
02222
PI
3510
02282
HS
J/SP
MISMATCH
BY
VENDOR
R1A
MISMATCH
GLAND SEAL WATER
2613
PLANT AIR
2614 3900-25J-021
NASIO3 SOLUTION
NASI03 INJECTOR,
C2-3510-ZM-643
2615 3500-25J-032
SPENT PROCESS GAS
EQUALIZATION HEADER
2610 3500-25J-024
SPENT PROCESS GAS
EQUALIZATION HEADER
2603 3500-25J-021
MO 4TH CLEANER CONC.
4TH CLEANER COLUMN CELL,
C2-3510-CM-602
2606 3500-25J-021
MO 5TH CLEANER TAILING
4TH CLEANER FEED
PUMPBOX, C2-3510-BX-611
2608 3500-25J-021
MO FINAL CONCENTRATE
MO FINAL CONCENTRATE
SAMPLER, C2-3510-SA-614
2239 3500-25J-024
NAHS SOLUTION
NAHS INJECTOR,
C2-3510-ZM-639
3569 3500-25J-037
NOTES:
1. THREE NOZZLES
2. MAINTAIN MINIMUM DISTANCE BETWEEN
VALVE AND FITTINGS OR FLANGES.
MMISMATCH
MMISMATCH
MISMATCH
MISMATCH
MIN
FAULT
TO FLOOR
MIN
AFD
H, P2
L, P2
LL, P2
TO DRAIN
L, P2
BY
VENDOR
MIN
MIN
FAULT
O/F
BY
VENDOR
NOTE 2
24''
MAN WAY
MIN
(TYPE FOR ALL)
MIN
NOTE
1
L, P2
LL, P1
TO DRAIN
OP/CL
MIN
H, P2
L, P2
BY
VENDOR
3510-WR-1316-C1A-4"-N
3510-WR-1317-C1A-2"-N
V
V
V
V
V
V
V
V
V
V
V
V
3510-WR-1318-C1A-4"-N
FI
3510-RC-1067-S1B-1"-N
ES
AG
KM
LT
ISSUED FOR CLIENT REVIEW
22-Dec-11
B
RP
ISSUED FOR COMBINED REVIEW
30-Jun-11
A
12/22/2011
K. MUNDY
A. GUNSON
A. REGNAULT
L. TAMELIN
12/22/2011
12:09:56
PM
WBS: 3510
B
PIPING AND INSTRUMENTATION DIAGRAM
MOLY PLANT
3500-25J-022
FIFTH CLEANER COLUMN FLOTATION
C2-3510-CM-603
2"x1"
1"x1/2"
1"
3510
02209
XV
+
1-1/2"
V
1"
1"
FI
FI
3510
02218
XV
+
2"x1"
FI
8"x6"
3510
02203
FV
+
V
3510
02207
XV
+
3510-WR-1318-C1A-4"-N
V
3510
02203
FE
+
C2-3510-PP-631
3510-PG-1031-C1A-10"-N
V
3510
02202
FV
+
2-1/2"
V
V
V
V
V
V
3510
02217
XV
+
1"
3510
02226
XV
+
3510-AP-1263-C1A-1"-N
V
FI
V
V
V
1"
V
SIZE:
C2-3510-CM-603
MO 5TH CLEANER COLUMN CELL
V
3510-SL-1537-R1A-8"-N
FI
2"x1"
3510-PG-1031-C1A-10"-N
1"x1/2"
3510-SL-1535-R1A-8"-N
3510-WR-1871-C1A-2-1/2"-N
3510-WR-1870-C1A-4"-N
1-1/2"
3510-SL-1538-R1A-6"-N
3510-WG-1046-C1A-2"-N
C2-3510-BX-612
ES
FC
3510
02227
XV
+
V
3510-SL-1537-R1A-8"-N
SIZE:
MATERIAL:
MOTOR:
C2-3510-PP-630
MO 5TH CLEANER FEED PUMP NO. 1
SIZE:
MATERIAL:
CAPACITY:
TRIM:
C2-3510-BX-612
MO 5TH CLEANER FEED PUMPBOX
3510
02202
FE
+
3510
02204
FE
+
V
3510
02224
XV
+
4"x2-1/2"
1"
3510-SL-1532-R1A-8"-N
V
3"
1-1/2"
V
V
3510
02214
FE
+
3510-RS-1014-C1D-2"-N
3510
02225
XV
+
1" 1"
V
2"x1"
3510-SL-1533-R1A-8"-N
V
FI
V
1"
3"
V
3510-WF-1425-C1A-1"-N
3510
02211
LV
+
ES
3510-AP-1263-C1A-1"-N
1/2"
SIZE:
MATERIAL:
MOTOR:
C2-3510-PP-631
MO 5TH CLEANER FEED PUMP NO. 2
1"
V
C2-3510-PP-630
1"
1"
3510-WG-1090-C1A-1"-N
V
FI
V
3510-SL-1534-R1A-8"-N
2-1/2"
ES
1-1/2"
ES
FI
FI
3510-PG-1038-C1A-6"-N
1"
6"
3510
02219
XV
+
V
1-1/2"
3510-SL-1528-R1A-12"-N
3510-PG-1037-C1A-4"-N
D
4
F
B
A
3
2
1 5 6 8
E
7
C
REV.
APPROVED
CHK.
DES.
REV. DATE REVISION DESCRIPTION
CLIENT
LEAD ENGINEER
SCALE DRAWING NUMBER
CHECK DESIGN CHECK DRAWING
DESIGNED BY DRAWN BY
APPROVAL DATE
APPROVAL DATE
APPROVED
CHK.
DES.
REV. DATE REVISION DESCRIPTION REFERENCE DRAWING No.
1:100
0
1:200
5m
10m
0
5m
10m
15m
20m
1:500
10m
0
20m
30m
40m
50m
1:1000
0
100m
50m
1:20
0
0.5m
1m
1.5m
2m
0
1:25
0.5m
1m
1.5m
1:33
1/3
2.5m
2m
0
1m
2m
3m
0
1:50
1m
2m
3m
4m
5m
CAD FILE NAME: P:0CAD000SPEM**
MODEL UPDATED:
DWG. FILE UPDATED:
MANUAL CHANGES MADE: YES NO YES NO YES NO
PROJECT MANAGER
ENGINEERING MANAGER
AREA PROJECTENGINEER
REFERENCE DRAWINGS
SAFETY SHARE:
APPROVAL DATE
CONTRACT
NO.
SAFETY SHARE :
BA6CVA1.IGR
NOTICE: THIS DRAWING HAS NOT BEEN PUBLISHED AND IS THE SOLE
PROPERTY OF FLUOR AND IS LENT TO THE BORROWER FOR THEIR
CONFIDENTIAL USE ONLY, AND IN CONSIDERATION OF THE LOAN OF THIS
DRAWING, THE BORROWER PROMISES AND AGREES TO RETURN IT UPON
REQUEST AND AGREES THAT IT WILL NOT BE REPRODUCED, COPIED LENT
OR OTHERWISE DISPOSED OF DIRECTLY OR INDIRECTLY, NOR USED FOR
ANY OTHER PURPOSE OTHER THAN WHICH IT IS FURNISHED.
NONE
Apr 2011
240K-C2-
3510-WR- -C1A-6"-N
3510-WR-1873-C1A-2-1/2"-N
3510-WR-1872-C1A-2-1/2"-N
3510-SL-1536-R1A-3"-N
A
3510
PCV
+
GLAND SEAL WATER
2974 3900-25J-023
PROCESS WATER
2612 3900-25J-016
FRESH WATER
4232 5100-25J-015
OP/CL
D
4
F
B
A
3
2
1 5 6 8
E
7
C
REV.
APPROVED
CHK.
DES.
REV. DATE REVISION DESCRIPTION
CLIENT
LEAD ENGINEER
SCALE DRAWING NUMBER
CHECK DESIGN CHECK DRAWING
DESIGNED BY DRAWN BY
APPROVAL DATE
APPROVAL DATE
APPROVED
CHK.
DES.
REV. DATE REVISION DESCRIPTION REFERENCE DRAWING No.
1:100
0
1:200
5m
10m
0
5m
10m
15m
20m
1:500
10m
0
20m
30m
40m
50m
1:1000
0
100m
50m
1:20
0
0.5m
1m
1.5m
2m
0
1:25
0.5m
1m
1.5m
1:33
1/3
2.5m
2m
0
1m
2m
3m
0
1:50
1m
2m
3m
4m
5m
CAD FILE NAME: P:0CAD000SPEM**
MODEL UPDATED:
DWG. FILE UPDATED:
MANUAL CHANGES MADE: YES NO YES NO YES NO
PROJECT MANAGER
ENGINEERING MANAGER
AREA PROJECTENGINEER
REFERENCE DRAWINGS
SAFETY SHARE:
APPROVAL DATE
CONTRACT
NO.
SAFETY SHARE :
BA6CVA1.IGR
NOTICE: THIS DRAWING HAS NOT BEEN PUBLISHED AND IS THE SOLE
PROPERTY OF FLUOR AND IS LENT TO THE BORROWER FOR THEIR
CONFIDENTIAL USE ONLY, AND IN CONSIDERATION OF THE LOAN OF THIS
DRAWING, THE BORROWER PROMISES AND AGREES TO RETURN IT UPON
REQUEST AND AGREES THAT IT WILL NOT BE REPRODUCED, COPIED LENT
OR OTHERWISE DISPOSED OF DIRECTLY OR INDIRECTLY, NOR USED FOR
ANY OTHER PURPOSE OTHER THAN WHICH IT IS FURNISHED.
NONE
Apr 2011
240K-C2-
3510
02410
ZI
3510
02401
PT
3510
02401
PI
3510
02401
DX
3510
02401
DE
3510
02401
FIT
3510
02401
DIT
3510
02401
DIC
3510
02401
FIC
3510
02401
FY
3510
02401
WQI
M
TO
FLOOR
SUMP
3510
02410
XV
+
3510
02407
XV
+
3510
02417
XV
+
LIFT POSITION
3510
02401
FE
+
10"x3"
10"x3"
3510
02481
II
3510
02481
XA
3510
02481
HS
FAULT
J/SP
3510
02482
II
3510
02482
XA
3510
02482
HS
FAULT
(J) JF/JR
SP
3510
02408
XV
+
3510
02419
XV
+
FI
3510
02411
OI
3510
02483
II
3510
02483
XA
3510
02483
HS
FAULT
J/SP
3510
02409
XV
+
FI
3510
02402
PE
3510
02402
PSH
3510
02402
PAH
TO FLOOR
3510
02406
XV
+
FI
3510
02418
XV
+
3510
02484
II
3510
02484
XA
3510
02484
HS
FAULT
J/SP
3510
02403
PE
3510
02403
PSH
3510
02403
PAH
TO FLOOR
3510
02416
XV
+
FI
3510
02422
XV
+
FI
3510
02423
XV
+
FI
3510
02424
XV
+
FI
3510
02425
XV
+
3510
02414
LE
3510
02414
LIT
3510
02414
LIC
T3
3510
02485
II
3510
02485
XA
3510
02485
HS
FAULT
J/SP
AFD
P1
P1
H, P2
L, P2
LL, P2
5% SLOPE
(VENDOR)
VENDOR
C2-3510-TK-640
C2-3510-PP-641
MIN
MIN
MIN
MIN
MIN
3"
6"
VENDOR
MIN
3"x2"
3"x2"
2% SLOPE
MIN
3510
02405
PI
3510
02404
FI
3510
02405
PIT
3510
02404
FIT
M
L, P2
LL, P1
L, P2
3510
02404
FE
+
3"x2"
3"x2"
C2-3510-BX-614
C2-3510-TK-614
C2-3510-TM-614
C2-3510-SA-11735
C2-3510-AZ-602
FI
FI
FI
FI FI
FI
HH, P1
H, P2
SIZE:
C2-3510-AZ-602
MO FINAL CONCENTRATE ANALYZER
SIZE:
C2-3510-SA-11735
MO FINAL CONCENTRATE SAMPLER
SIZE:
C2-3510-BX-614
MO CONCENTRATE THICKENER FEED BOX
SIZE:
C2-3510-TK-614
MO CONCENTRATE THICKENER TANK
SIZE: 6 m DIA.
MOTOR:
C2-3510-TM-614
MO CONCENTRATE THICKENER MECHANISM
SIZE:
MATERIAL:
CAPACITY:
TRIM:
C2-3510-TK-640
MO CONCENTRATE THICKENER O/F TANK
SIZE:
MATERIAL:
MOTOR:
C2-3510-PP-641
MO CONCENTRATE THICKENER O/F PUMP
MIN.
THICKENED MO CONC.
MO CONCENTRATE STORAGE
TANK, C2-3510-TK-604
2236 3500-25J-026
MO THICKENER O/F
MO INTERMEDIATE
THICKENER, C2-3510-TK-614
2237 3500-25J-014
FINAL MO CONCENTRATE
MO 5TH CLEANER COLUMN
CELL, C2-3510-CM-603
2239 3500-25J-022
FILTER MANIF. FLUSH WAT.
MO FILTER MANIFOLD WASH
WATER RETURN PUMP,
2240 3500-25J-026
DEWATERING AREA SUMP
MO DEWATERING AREA SUMP
PUMP, C2-3510-PP-636
2241 3500-25J-027
C2-3510-PP-661
PUMP, C2-3910-PP-153
3510-WR-1878-C1A-2"-N
T1
3510-SL-1539-R1A-4"-N
3510-PG-1081-C1A-10"-N
V
3510-SL-1544-R1A-3"-N
3510-SL-1546-R1A-3"-N
3510-WR-1880-C1A-3"-N
3510-WR-1876-C1A-2"-N
3510-WR-1875-C1A-1-1/2"-N
3510-RE-1013-C1A-2"-N
3510-SL-1542-R1A-6"-N
3510-SL-1547-R1A-3"-N
3510-SL-1574-C1B-2"-N
ES
3510-SL-1538-R1A-6"-N ES
3510-WR-1874-C1A-4"-N
3510-DR-1007-C1A-8"-N
3510-SL-1575-C1B-4"-N
3510-WR- -C1A-3"-N
ES
3510-SL-1543-R1A-3"-N
3510-WR-1877-C1A-2"-N
SPENT PROCESS GAS
EQUALIZATION HEADER
2610 3500-25J-022
AG
KM
LT
ISSUED FOR CLIENT REVIEW
22-Dec-11
B
RP
ISSUED FOR COMBINED REVIEW
30-Jun-11
A
12/22/2011
K. MUNDY
A. GUNSON
A. REGNAULT
L. TAMELIN
12/22/2011
12:11:42
PM
WBS: 3510
B
PIPING AND INSTRUMENTATION DIAGRAM
MOLY PLANT
3500-25J-024
FINAL MO CONCENTRATE AND SAMPLING
3510
02410
XA
3510
02417
XA
3510
02410
ZS
3510
02417
ZS
3510
02407
ZS
3510
02406
XA
3510
02406
ZS
3510
02408
ZS
3510
02408
XA
3510
02418
ZS
3510
02418
XA
3510
02407
XA
3510
02409
ZS
3510
02409
XA
3510
02419
ZS
3510
02419
XA
3510
02422
XA
3510
02422
ZS
3510
02423
XA
3510
02423
ZS
3510
02424
ZS
3510
02424
XA
3510
02425
XA
3510
02425
ZS
3510
02416
XA
3510
02416
ZS
OP/CL
OP/CL
OP/CL
OP/CL
OP/CL
OP/CL
OP/CL
OP/CL
OP/CL
OP/CL
OP/CL
OP/CL
SELECT
3510-WR-1874-C1A-2"-N
MISMATCH
MISMATCH
MISMATCH
MISMATCH
3510
02401
HY
RSP
MISMATCH
MISMATCH
MO FILTER FEED
MO FILTER, C2-3510-FL-601
2253 3500-25J-026
SPENT PROCESS GAS
EQUALIZATION HEADER
2258 3500-25J-026
3510-SL-1545-R1A-3"-N
3510-SL-1546-R1A-3"-N
3510-SL-1541-R1A-8"-N
3510-SL-1540-R1A-6"-N
4"x2"
3510-PG-1039-C1D-4"-N
3510-WG-1047-C1A-2"-N
3510-PG-1040-C1A-4"-N
3510-PG-1081-C1A-10"-N
3510-WR-1879-C1A-3"-N
3510-N2G-1041-C1D-4"-N
3510-SL-1542-R1A-3"-N
T1
T1
C2-3510-PP-613
C2-3510-PP-614
SIZE:
MATERIAL:
MOTOR:
C2-3510-PP-614
MO CONCENTRATE THICKENER UNDERFLOW PUMP NO.2
SIZE:
MATERIAL:
MOTOR:
C2-3510-PP-613
MO CONCENTRATE THICKENER UNDERFLOW PUMP NO.1
AFD
AFD
FLOCCULANT
MO CONCENTRATE
FLOCCULANT METERING
2792 3900-25J-007
CONT.
PROCESS WATER
2244 3900-25J-016
GLAND SEAL WATER
2975 3900-25J-023
D
4
F
B
A
3
2
1 5 6 8
E
7
C
REV.
APPROVED
CHK.
DES.
REV. DATE REVISION DESCRIPTION
CLIENT
LEAD ENGINEER
SCALE DRAWING NUMBER
CHECK DESIGN CHECK DRAWING
DESIGNED BY DRAWN BY
APPROVAL DATE
APPROVAL DATE
APPROVED
CHK.
DES.
REV. DATE REVISION DESCRIPTION REFERENCE DRAWING No.
1:100
0
1:200
5m
10m
0
5m
10m
15m
20m
1:500
10m
0
20m
30m
40m
50m
1:1000
0
100m
50m
1:20
0
0.5m
1m
1.5m
2m
0
1:25
0.5m
1m
1.5m
1:33
1/3
2.5m
2m
0
1m
2m
3m
0
1:50
1m
2m
3m
4m
5m
CAD FILE NAME: P:0CAD000SPEM**
MODEL UPDATED:
DWG. FILE UPDATED:
MANUAL CHANGES MADE: YES NO YES NO YES NO
PROJECT MANAGER
ENGINEERING MANAGER
AREA PROJECTENGINEER
REFERENCE DRAWINGS
SAFETY SHARE:
APPROVAL DATE
CONTRACT
NO.
SAFETY SHARE :
BA6CVA1.IGR
NOTICE: THIS DRAWING HAS NOT BEEN PUBLISHED AND IS THE SOLE
PROPERTY OF FLUOR AND IS LENT TO THE BORROWER FOR THEIR
CONFIDENTIAL USE ONLY, AND IN CONSIDERATION OF THE LOAN OF THIS
DRAWING, THE BORROWER PROMISES AND AGREES TO RETURN IT UPON
REQUEST AND AGREES THAT IT WILL NOT BE REPRODUCED, COPIED LENT
OR OTHERWISE DISPOSED OF DIRECTLY OR INDIRECTLY, NOR USED FOR
ANY OTHER PURPOSE OTHER THAN WHICH IT IS FURNISHED.
NONE
Apr 2011
240K-C2-
3510
02510
LE
3510
02510 A
LT
3510
02510 A
LI
3510
02507
XV
+
FI
3510
02517
XV
+
FI
3510
02510
LIC
T3
3510
02585
II
3510
02585
XA
3510
02585
HS
FAULT
J/SP
T3
3510
02508
XV
+
FI
3510
02588
II
3510
02588
XA
3510
02588
HS
FAULT
J/SP
3510
02518
XV
+
FI
3510
02512
PI
3510
02519
XV
+
FI
3510
02502
FY
3510
02502
DI
3510
02502
FI
3510
02502
WQI
3510
02502
DIT
3510
02502
DE
3510
02502
FIT
3510
02509
XV
+
FI
M
3510
02513
PI
3510
02502
DX
3510
02501
AE
3510
02501
AIT
3510
02501
AI
MASS
FLOW
3510
02502
FE
+
NOTE 1
NOTE 1
PH
H, P2
L, P2
LL, P2
SLOPE
NOTE
1
NOTE
1
1-1/2"x1"
12"x10"
10"
NOTES:
1. MINIMUM DISTANCE TO BE MAINTAINED BETWEEN
VALVE AND FITTINGS OR FLANGES.
BY
VENDOR
BY
VENDOR
BY
VENDOR
BY
VENDOR
C2-3510-SA-613
C2-3510-PP-604
C2-3510-PP-603
C2-3510-BX-604
3510
02515
PI
3510
02514
FI
3510
02515
PIT
3510
02514
FIT
M
3510
02514
FE
+
3"x1"
3"x1"
3"x1"
3"x1"
M
3510
02504
FIT
3510
02505
PIT
3510
02505
PI
3510
02504
FI
3510
02504
FE
+
L, P2
L, P2
LL, P1
12"
N12 N10 N5 N6
N2
N1
N4
6"
3/4"
1-1/2"
1-1/2"
1-1/2"
1-1/2"
1-1/2"
1-1/2"
10"O/F
L, P2
LL, P1 L, P2
3"
3"
MO ROUGHER TAILING
MO ROUGHER FLOTATION
IN-STREAM ANALIZER,
1884 3500-25J-006
CU CONC. SAMPLE
MO ROUGHER ANALYZER,
C2-3510-AZ-601
1880 3500-25J-006
SPENT PROCESS GAS
EQUALIZATION HEADER
1875 3500-25J-005
MO ROUGHER SCAV. TAIL.
ROUGHER SCAVENGER
FLOTATION CELL NO. 7,
1876 3500-25J-005
CU CONCENTRATE
CU CONCENTRATE
THICKENER FEED BOX,
2248 3600-25J-001
R1A
3510-WR-1329-C1A-2"-N
SIZE:
MATERIAL:
MOTOR:
C2-3510-PP-604
MO ROUGHER TAILING PUMP NO. 2
3510-SL-1430-R1A-10"-N
ES
3510-SL-1435-R1A-4"-N
3510-WG-1091-C1A-1"-N
3510-WG-1048-C1A-1-1/2"-N
ES
SIZE:
MATERIAL:
MOTOR:
C2-3510-PP-603
MO ROUGHER TAILING PUMP NO. 1
3510-SL-1556-R1A-10"-N
ES
3510-SL-1555-R1A-10"-N 3510-SL-1557-R1A-4"-N
SIZE:
MATERIAL:
CAPACITY:
TRIM:
C2-3510-SA-613
MO ROUGHER TAILING SAMPLER
3510-SL-1553-R1A-10"-N
3510-SL-1554-R1A-10"-N
SIZE:
MATERIAL:
CAPACITY:
TRIM:
C2-3510-BX-604
MO ROUGHER TAILING PUMPBOX
3510-SL-1558-R1A-8"-N
AG
KM
LT
ISSUED FOR CLIENT REVIEW
22-Dec-11
B
RP
ISSUED FOR COMBINED REVIEW
30-Jun-11
A
12/22/2011
K. MUNDY
A. GUNSON
A. REGNAULT
L. TAMELIN
12/22/2011
2:33:09
PM
WBS: 3510
B
PIPING AND INSTRUMENTATION DIAGRAM
MOLY PLANT
3500-25J-025
MO ROUGHER TAILING
AFD
AFD
3510
02518
ZS
3510
02518
XA
3510
02517
XA
3510
02517
ZS
3510
02507
ZS
3510
02507
XA
3510
02508
XA
3510
02508
ZS
3510
02519
XA
3510
02509
XA
3510
02519
ZS
3510
02509
ZS
OP/CL OP/CL
OP/CL
OP/CL
OP/CL
OP/CL
PROCESS WATER
2832 3900-25J-016
GLAND SEAL WATER
3323 3900-25J-023
C2-2510-CF-707
C2-3610-BX-001
MISMATCH
MISMATCH
ES
MISMATCH
MISMATCH
MISMATCH
MISMATCH
C2-3510-AZ-601
3510-PG-1042-C1A-4"-N
VENDOR
T3
T3
T3
30"
OIL COOLER FAN
VENDOR PLC &
CONTROL PANEL
3530
02683
XA
3530
02683
II
M
3530
02604
FI L, P2
LL, P1
3530
02605
PI
L, P2
3530
02682
HS
J/SP
3530
02682
XA
3530
02682
II
3530
02605
PIT
3530
02604
FIT
M
3530
02683
HS
J/SP
3530
02641
FIT
3530
02615
PIT
3530
02641
FI
3530
02615
PI
3530
02613
PI
3530
02603
PI
3530
02681
HS
J/SP
3530
02681
XA
3530
02681
II
3530
02610
LIT
M
3530
02610
LE
3530
02610
LI
3530
02620
FIT
3530
02620
DE
3530
02620
DX
3530
02620
FI
3530
02620
DIT
3530
02620
DI
3530
02620
FY
3530
02620
WQI
3530
02603
WE
3530
02603
WIT
3530
02686
HS
J/SP
3530
02686
XA
3530
02686
II
3530
02685
HS
J/SP
3530
02685
II
3530
02685
XA
3530
02684
II
3530
02684
XA
3530
02684
HS
J/SP
3530
02601
LE
3530
02601
LT
3530
02601 A
LI
3530
02601
LI
3510
02621
XL
3510
02621
XS
MO CONCENTRATE
MO CONCENTRATE
THICKENER FEEDBOX,
2240
3500-25J-024
C2-3510-BX-614
AFD
L, P2
LL, P1
L, P2
AFD
FAULT
FAULT
HH, P2
H, P2
L, P2
LL, P2
FILTER OPERATING FLOOR
FLOOR
DRAIN
MASS
FLOW
FAULT
AFD
OIL HEATER
FAULT
H, P2
L, P2
LL, P1
FAULT
FAULT
DRUM
FILTER
HYDRAULIC
POWER UNIT
HYDRAULIC PUMP
VENDOR
2"x1-1/2"
V
C2-3510-PP-661 C2-3510-TK-612
C2-3510-TK-604
C2-3510-AG-604
C2-3510-TK-607
C2-3510-FL-601
3510-AP-1265-C1A-2"-N
3510-WF-1437-C1A-3"-N
3510-WF-1433-C1A-2"-N
3510-SL-1546-R1A-3"-N
FI
3"x1" 3"x1"
1"x1"
1"x1"
3530
02641
FE
+
1-1/2"x1"
C2-3510-PP-634
C2-3510-PP-635
FI
FI
3530
02609
XV
+
FI
3510-PG-1039-C1A-4"-N
3510-SL-1563-R1B-4"-N
10"
3510-SL-1567-C1B-2"-N
3510-SL-
-C1B-4"-N
3510-SL-1571-C1B-4"-N
3510-SL-1574-C1B-2"-N
3510-WG-1092-C1A-1"-N
3510-SL-1565-R1B-4"-N
3510-SL-1562-R1B-4"-N
8"x4"
3510-AP-1265-C1A-2"-N
3510-OLL-1041-S1A-1"-N
3530
02620
FE
+
V
3530
02622
XV
+
FI
2"x1-1/2" 6"x1-1/2" 6"x2"
C2-3510-HY-601
3/4"x1/2"
4"x3"
3510-SL-1573-C1B-2"-N
1-1/2"
1-1/2"
3"
1-1/2"
1-1/2"
1-1/2"
10"
3"
SIZE:
MATERIAL:
MOTOR:
C2-3510-FL-601
MO CONCENTRATE FILTER
SIZE:
MATERIAL:
MOTOR:
C2-3510-AG-604
MO CONCENTRATE STORAGE TANK AGITATOR
3510-DR-1008-C1B-4"-N
4"x2"
3"
SIZE:
MATERIAL:
CAPACITY:
TRIM:
C2-3510-TK-604
MO CONCENTRATE STORAGE TANK
SIZE:
MATERIAL:
MOTOR:
C2-3510-PP-634
MO CONCENTRATE PUMP NO. 1
SIZE:
MATERIAL:
MOTOR:
C2-3510-PP-635
MO CONCENTRATE PUMP NO. 2
SIZE:
MATERIAL:
MOTOR:
C2-3510-PP-661
MO FILTRATE MANIFOLD WASH WATER RETURN PUMP
SIZE:
MATERIAL:
CAPACITY:
TRIM:
C2-3510-TK-612
MO MANIFOLD WASH WATER RETURN TANK
SIZE:
MATERIAL:
CAPACITY:
TRIM:
C2-3510-TK-607
MO AIR RELEASE TANK
SIZE:
C2-3510-HY-601
MO FILTER HYDRAULIC UNIT
3510-SL-1566-R1B-4"-N
4"x3"
4"x2"
D
4
F
B
A
3
2
1 5 6 8
E
7
C
REV.
APPROVED
CHK.
DES.
REV. DATE REVISION DESCRIPTION
CLIENT
LEAD ENGINEER
SCALE DRAWING NUMBER
CHECK DESIGN CHECK DRAWING
DESIGNED BY DRAWN BY
APPROVAL DATE
APPROVAL DATE
APPROVED
CHK.
DES.
REV. DATE REVISION DESCRIPTION REFERENCE DRAWING No.
1:100
0
1:200
5m
10m
0
5m
10m
15m
20m
1:500
10m
0
20m
30m
40m
50m
1:1000
0
100m
50m
1:20
0
0.5m
1m
1.5m
2m
0
1:25
0.5m
1m
1.5m
1:33
1/3
2.5m
2m
0
1m
2m
3m
0
1:50
1m
2m
3m
4m
5m
CAD FILE NAME: P:0CAD000SPEM**
MODEL UPDATED:
DWG. FILE UPDATED:
MANUAL CHANGES MADE: YES NO YES NO YES NO
PROJECT MANAGER
ENGINEERING MANAGER
AREA PROJECTENGINEER
REFERENCE DRAWINGS
SAFETY SHARE:
APPROVAL DATE
CONTRACT
NO.
SAFETY SHARE :
BA6CVA1.IGR
NOTICE: THIS DRAWING HAS NOT BEEN PUBLISHED AND IS THE SOLE
PROPERTY OF FLUOR AND IS LENT TO THE BORROWER FOR THEIR
CONFIDENTIAL USE ONLY, AND IN CONSIDERATION OF THE LOAN OF THIS
DRAWING, THE BORROWER PROMISES AND AGREES TO RETURN IT UPON
REQUEST AND AGREES THAT IT WILL NOT BE REPRODUCED, COPIED LENT
OR OTHERWISE DISPOSED OF DIRECTLY OR INDIRECTLY, NOR USED FOR
ANY OTHER PURPOSE OTHER THAN WHICH IT IS FURNISHED.
NONE
Apr 2011
240K-C2-
MO CONCENTRATE
MO CONCENTRATE
THICKENER U/F PUMPS,
2253 3500-25J-024
C2-3510-PP-613/614
MO CONCENTRATE
MO CONC. DRYER SCREW
FEEDER, C2-3510-CV-601
2256 3500-25J-031
MO CONCENTRATE
MO CONC. DRYER SCREW
FEEDER, C2-3510-CV-601
2257 3500-25J-031
MO FILTER WATER
MO CONC. THICKENER
FEEDBOX, C2-3510-BX-614
2258 3500-25J-024
SCRUBBER O/F
MO CONC.DRYER WET
SCRUBBER, C2-3510-DC-604
2259
3500-25J-031
SCRUBBER BLOWN DOWN
MO CONC.DRYER WET
SCRUBBER,C2-3510-DC-604
2260
3500-25J-031
SCRUBBER DRAIN
MO CONC.DRYER WET
SCRUBBER, C2-3510-DC-604
2261
3500-25J-031
SCRUBBER DRAIN
MO CONC.DRYER WET
SCRUBBER, C2-3510-DC-604
2262
3500-25J-031
INSTRUMENT AIR
2263
3900-25J-022
3530
02619
XV
+
T1
3530
02604
FE
+
3530
02607
XV
+
3530
02617
XV
+
ES
V
ES
ES
V
ES
AG
KM
LT
ISSUED FOR CLIENT REVIEW
22-Dec-11
B
RP
ISSUED FOR COMBINED REVIEW
30-Jun-11
A
12/22/2011
K. MUNDY
A. GUNSON
A. REGNAULT
L. TAMELIN
12/22/2011
2:43:15
PM
WBS: 3510
B
PIPING AND INSTRUMENTATION DIAGRAM
MOLY PLANT
3500-25J-026
MO CONCENTRATE FILTRATION
3510
02622
ZS
3510
02622
XA
OP/CL
3510
02609
XA
3510
02609
ZS
OP/CL
3510
02619
XA
3510
02619
ZS
OP/CL
3510
02617
ZS
3510
02607
ZS
3510
02617
XA
3510
02607
XA
OP/CL
OP/CL
3510-WR-
-C1A-2"-N
GLAND SEAL WATER
2977 3900-25J-023
V V
NOTES:
1. MINIMUM DISTANCE TO BE MAINTAINED
BETWEEN VALVE AND FITTINGS OR FANGES.
MISMATCH
MISMATCH
MISMATCH
MISMATCH
MISMATCH
NOTE 1
NOTE 1
NOTE 1
NOTE 1
FRESH WATER
MO FILTER CLOTH WASH
PUMP, C2-3510-PW-659
3570 3500-25J-028
FRESH WATER
MO FILTER PRESSING WATER
PUMP, C2-3510-PW-668
3571 3500-25J-028
SPENT PROCESS GAS
EQUALIZATION HEADER
2236
3500-25J-024
3510-WG-1111-C1A-1-1/2"-N
3510-WR-15917-R1A-1"-N
3510-WR-15918-R1A-1"-N
3510-WR-15919-R1A-1"-N
3510-WR-15920-R1A-1"-N
(CHUTE)
(CHUTE)
3530-SL-1568-C1B-4"-N
3530-SL-1569-C1B-4"-N
3510-AI-1048-C1D-3/4"-N
PROCESS WATER
MANIFOLD FLUSH PUMP,
C2-3510-PP-658
2267
3500-25J-027
3510-WR-1884-C1A-6"-N
COMPRESSED AIR
MO DRYING AIR RECEIVER,
C2-3510-VS-601
2268 3500-25J-027
3530-SL-1564-R1B-4"-N
PROCESS WATER
2276 3900-25J-016
D
4
F
B
A
3
2
1 5 6 8
E
7
C
REV.
APPROVED
CHK.
DES.
REV. DATE REVISION DESCRIPTION
CLIENT
LEAD ENGINEER
SCALE DRAWING NUMBER
CHECK DESIGN CHECK DRAWING
DESIGNED BY DRAWN BY
APPROVAL DATE
APPROVAL DATE
APPROVED
CHK.
DES.
REV. DATE REVISION DESCRIPTION REFERENCE DRAWING No.
1:100
0
1:200
5m
10m
0
5m
10m
15m
20m
1:500
10m
0
20m
30m
40m
50m
1:1000
0
100m
50m
1:20
0
0.5m
1m
1.5m
2m
0
1:25
0.5m
1m
1.5m
1:33
1/3
2.5m
2m
0
1m
2m
3m
0
1:50
1m
2m
3m
4m
5m
CAD FILE NAME: P:0CAD000SPEM**
MODEL UPDATED:
DWG. FILE UPDATED:
MANUAL CHANGES MADE: YES NO YES NO YES NO
PROJECT MANAGER
ENGINEERING MANAGER
AREA PROJECTENGINEER
REFERENCE DRAWINGS
SAFETY SHARE:
APPROVAL DATE
CONTRACT
NO.
SAFETY SHARE :
BA6CVA1.IGR
NOTICE: THIS DRAWING HAS NOT BEEN PUBLISHED AND IS THE SOLE
PROPERTY OF FLUOR AND IS LENT TO THE BORROWER FOR THEIR
CONFIDENTIAL USE ONLY, AND IN CONSIDERATION OF THE LOAN OF THIS
DRAWING, THE BORROWER PROMISES AND AGREES TO RETURN IT UPON
REQUEST AND AGREES THAT IT WILL NOT BE REPRODUCED, COPIED LENT
OR OTHERWISE DISPOSED OF DIRECTLY OR INDIRECTLY, NOR USED FOR
ANY OTHER PURPOSE OTHER THAN WHICH IT IS FURNISHED.
NONE
Apr 2011
240K-C2-
T1
3510
02781
II
3510
02781
XA
3510
02781
HS
FAULT
J/SP
3510
02701
LE
3510
02701
LIT
3510
02701 A
LI
3510
02701
LIC
3510
02701
LV
+
2"x1-1/2"
2"x1-1/4"
H, P2
L, P2
C2-3510-TK-605
C2-3510-PW-658
3510
02783
II
3510
02783
XA
3510
02783
HS
FAULT
J/SP
V
V
C2-3510-CO-601
SIZE:
MATERIAL:
CAPACITY:
TRIM:
C2-3510-TK-605
MO MANIFOLD FLUSH WATER TANK
SIZE:
MATERIAL:
MOTOR:
C2-3510-PW-658
MO FLUSH MANIFOLD WATER PUMP NO. 1
SIZE:
MATERIAL:
MOTOR:
C2-3510-CO-601
MO CONCENTRATE DRYING AIR COMPRESSOR
3510
02705
PIT
3510
02705
PI
M
3510
02704
FIT
3510
02704
FI
L, P2
L, P2
LL, P1
3510
02704
FE
+
3510-WR-1884-C1A-2"-N
GLAND SEAL WATER
2265 3900-25J-016
PROCESS WATER
MO CONCENTRATE FILTER,
C2-3510-FL-601
2267 3500-25J-026
COMPRESSED AIR
MO CONCENTRATE FILTER
C2-3510-FL-601
2268 3500-25J-026
3510-WG-1109-C1A-1-1/2"-N
3510-AP-1265-C1A-2"-N
3510-WR-1319-C1A-2"-N
ES
AG
KM
LT
ISSUED FOR CLIENT REVIEW
22-Dec-11
B
RP
ISSUED FOR COMBINED REVIEW
30-Jun-11
A
12/22/2011
K. MUNDY
A. GUNSON
A. REGNAULT
L. TAMELIN
12/22/2011
2:44:45
PM
WBS: 3510
B
PIPING AND INSTRUMENTATION DIAGRAM
MOLY PLANT
3500-25J-027
MO CONC. FILTRATION ANCILLARIES SH. 1 OF 2
V
V
3510
02710
PSV
+
V
PSET=
862.00 KPA (G)
3510
02709
PI
V
V V
V
DRAIN
DIRT POCKET
AUTO
DRAIN
VENDOR
C2-3510-VS-601
SIZE:
MATERIAL:
CAPACITY:
TRIM:
C2-3510-VS-601
MO CONCENTRATE DRYING AIR RECEIVER
V V
V
T1
2"x1-1/2"
3"
TO FLOOR SUMP
T1
3510
02782
II
3510
02782
XA
3510
02782
HS
FAULT
J/SP
2"x1-1/4"
C2-3510-PW-758
4"x3"
3510
02708
LI
3510
02786
HS
C2-3510-PP-636
3510
02786
XA
MO DEWATERING AREA
MO CONCENTRATE
THICKENER FEEDBOX,
2272 3500-25J-024
J/SP
C2-3510-BX-614
3510
02708
LE
3510
02786
II
H, P2
HH, P1
L, P2
3510-SL-1575-C1B-4"-N
SIZE:
MATERIAL:
MOTOR:
C2-3510-PP-636
MO DEWATERING AREA SUMP PUMP
T8
3510
02708
LIT
FAULT
SIZE:
MATERIAL:
MOTOR:
C2-3510-PW-758
MO FLUSH MANIFOLD WATER PUMP NO. 2
3510
02715
PIT
3510
02715
PI
M
3510
02714
FIT
3510
02714
FI
L, P2
L, P2
LL, P1
3510
02714
FE
+
ES
3510
02707
XV
+
FI
3510
02707
XA MISMATCH
3510
02707
ZS
OP/CL
3510
02717
XA MISMATCH
3510
02717
ZS
3510
02717
XV
+
FI
3510-WR-1883-C1A-2"-N
3510-WR-2019-C1A-2"-N
3510-WG-1120-C1A-1-1/2"-N
3510-WR-1824-C1A-2"-N
3510-AP-1264-C1A-1-1/2"-N
TO ATMOSPHERE
SUMP CONT.
PROCESS WATER
4223 3900-25J-016
D
4
F
B
A
3
2
1 5 6 8
E
7
C
REV.
APPROVED
CHK.
DES.
REV. DATE REVISION DESCRIPTION
CLIENT
LEAD ENGINEER
SCALE DRAWING NUMBER
CHECK DESIGN CHECK DRAWING
DESIGNED BY DRAWN BY
APPROVAL DATE
APPROVAL DATE
APPROVED
CHK.
DES.
REV. DATE REVISION DESCRIPTION REFERENCE DRAWING No.
1:100
0
1:200
5m
10m
0
5m
10m
15m
20m
1:500
10m
0
20m
30m
40m
50m
1:1000
0
100m
50m
1:20
0
0.5m
1m
1.5m
2m
0
1:25
0.5m
1m
1.5m
1:33
1/3
2.5m
2m
0
1m
2m
3m
0
1:50
1m
2m
3m
4m
5m
CAD FILE NAME: P:0CAD000SPEM**
MODEL UPDATED:
DWG. FILE UPDATED:
MANUAL CHANGES MADE: YES NO YES NO YES NO
PROJECT MANAGER
ENGINEERING MANAGER
AREA PROJECTENGINEER
REFERENCE DRAWINGS
SAFETY SHARE:
APPROVAL DATE
CONTRACT
NO.
SAFETY SHARE :
BA6CVA1.IGR
NOTICE: THIS DRAWING HAS NOT BEEN PUBLISHED AND IS THE SOLE
PROPERTY OF FLUOR AND IS LENT TO THE BORROWER FOR THEIR
CONFIDENTIAL USE ONLY, AND IN CONSIDERATION OF THE LOAN OF THIS
DRAWING, THE BORROWER PROMISES AND AGREES TO RETURN IT UPON
REQUEST AND AGREES THAT IT WILL NOT BE REPRODUCED, COPIED LENT
OR OTHERWISE DISPOSED OF DIRECTLY OR INDIRECTLY, NOR USED FOR
ANY OTHER PURPOSE OTHER THAN WHICH IT IS FURNISHED.
NONE
Apr 2011
240K-C2-
AG
KM
LT
ISSUED FOR CLIENT REVIEW
22-Dec-11
B
NOT USED
A
12/22/2011
K. MUNDY
A. GUNSON
A. REGNAULT
L. TAMELIN
12/22/2011
12:15:03
PM
WBS: 3510
B
PIPING AND INSTRUMENTATION DIAGRAM
MOLY PLANT
3500-25J-028
MO CONC. FILTRATION ANCILLARIES SH. 2 OF 2
C2-3510-PW-659
C2-3510-TK-611
C2-3510-PW-759
C2-3510-PW-668
V
V
3510-WF-1430-C1A-2"-N
FAULT
3510-WF-1428-C1A-4"-N
J/SP
V
3510-WF-1433-C1A-2"-N
3510-WF-1437-C1A-3"-N
3510
02883
II
V
3510-WF-1566-C1A-2"-N
SIZE:
MATERIAL:
CAPACITY:
TRIM:
C2-3510-TK-682
MO FILTER PRESSING WATER STATION TANK
3510
02883
XA
T1
SIZE:
MATERIAL:
CAPACITY:
TRIM:
C2-3510-TK-611
MO WASH WATER TANK
3510-WF-1432-C1A-2"-N
SIZE:
MATERIAL:
MOTOR:
C2-3510-PW-668
MO FILTER PRESSING WATER STATION PUMP
SIZE:
MATERIAL:
MOTOR:
C2-3510-PW-659
MO CLOTH WASH WATER PUMP NO. 1
V
SIZE:
MATERIAL:
MOTOR:
C2-3510-PW-759
MO LOTH WASH WATER PUMP NO. 2
V
3510
02883
HS
V
3"
3510
02803
PCV
+
3510
02802
XV
+
3510
02804
PL
FAULT
J/SP
3510
02801
LIC
V
T1
3510
02801
LE
3510-WG-1111-C1A-1-1/2"-N
3510
02801
LT
3510
02802
XA
3510
02801 A
LI
3510
02802
ZS
T1
3510
02884
II
FRESH WATER
2266 5100-25J-015
3510
02884
XA
3510
02881
II
3510
02884
HS
3510
02881
XA
3510
02801
LV
+
GLAND SEAL WATER
FILTER FEED PUMPS,
C2-3510-PP-634/635
2270 3500-25J-026
3510
02881
HS
FAULT
C2-3510-TK-682
J/SP
3"
3510-WF-1429-C1A-1-1/2"-N
MISMATCH
FI
3510
02806
XV
+
FI
3510
02806
XA MISMATCH
3510
02806
ZS
OP/CL
C2-3510-PW-660
V
3510
02882
II
3510
02882
XA
3510
02882
HS
FAULT
J/SP
T1
3510
02805
XV
+
FI
3510
02805
XA MISMATCH
3510
02805
ZS
OP/CL
V
SIZE:
MATERIAL:
MOTOR:
C2-3510-PW-660
MO GLAND WATER BOOSTER PUMP
3510-WG-1110-C1A-2"-N
3510
02807
XA MISMATCH
3510
02807
ZS
OP/CL
3510
02807
XV
+
3510
02808
XA MISMATCH
3510
02808
ZS
OP/CL
3510
02808
XV
+
3510-WF-1438-C1A-2"-N
FRESH WATER
MO CONCENTRATE FILTER,
C2-3510-FL-601
3571 3500-25J-026
3510-WF-1435-C1A-3"-N
3510-WF-1436-C1A-3"-N
3510-WF-1529-C1A- -N
FRESH WATER
MO CONCENTRATE FILTER,
C2-3510-FL-601
3570 3500-25J-026
3510-WF-1567-C1A-2"-N
3510-WF-1568-C1A-2"-N
3510
LIC
3510
LE
3510
LT
3510
A
LI
3510
LV
+
D
4
F
B
A
3
2
1 5 6 8
E
7
C
REV.
APPROVED
CHK.
DES.
REV. DATE REVISION DESCRIPTION
CLIENT
LEAD ENGINEER
SCALE DRAWING NUMBER
CHECK DESIGN CHECK DRAWING
DESIGNED BY DRAWN BY
APPROVAL DATE
APPROVAL DATE
APPROVED
CHK.
DES.
REV. DATE REVISION DESCRIPTION REFERENCE DRAWING No.
1:100
0
1:200
5m
10m
0
5m
10m
15m
20m
1:500
10m
0
20m
30m
40m
50m
1:1000
0
100m
50m
1:20
0
0.5m
1m
1.5m
2m
0
1:25
0.5m
1m
1.5m
1:33
1/3
2.5m
2m
0
1m
2m
3m
0
1:50
1m
2m
3m
4m
5m
CAD FILE NAME: P:0CAD000SPEM**
MODEL UPDATED:
DWG. FILE UPDATED:
MANUAL CHANGES MADE: YES NO YES NO YES NO
PROJECT MANAGER
ENGINEERING MANAGER
AREA PROJECTENGINEER
REFERENCE DRAWINGS
SAFETY SHARE:
APPROVAL DATE
CONTRACT
NO.
SAFETY SHARE :
BA6CVA1.IGR
NOTICE: THIS DRAWING HAS NOT BEEN PUBLISHED AND IS THE SOLE
PROPERTY OF FLUOR AND IS LENT TO THE BORROWER FOR THEIR
CONFIDENTIAL USE ONLY, AND IN CONSIDERATION OF THE LOAN OF THIS
DRAWING, THE BORROWER PROMISES AND AGREES TO RETURN IT UPON
REQUEST AND AGREES THAT IT WILL NOT BE REPRODUCED, COPIED LENT
OR OTHERWISE DISPOSED OF DIRECTLY OR INDIRECTLY, NOR USED FOR
ANY OTHER PURPOSE OTHER THAN WHICH IT IS FURNISHED.
NONE
Apr 2011
240K-C2-
3510
03181
II
3510
03181
XA
3510
03181
HS
FAULT
J/SP
3510
03182
II
3510
03182
XA
3510
03182
HS
FAULT
J/SP
3510
03101
LE
3510
03101
LT
3510
03101 A
LI
3510
03101
LI
3510
03183
HS
3510
03102
XV
+
3510
03103
WE
3510
03103
WIT
3510
03103
WQI
3510
03103
WI
3510
03103
WQI
A
B
HH, P1
H, P2
TO ATM
2-1/2"x2"
2"x1-1/2"
2"x1-1/2"
V V V
V
V
V
V
V
6"x4"
3"x2-1/2" 3"x2-1/2" 3"x2-1/2"
(TYP. 4)
2"x1"
(TYP. 2)
2"x1"
2"x1-1/2"
V V
6" (VENDOR SUPPLIED STACK)
2"x1"
2"x1"
4"x3"
4"x3"
C2-3510-CV-601
C2-3510-ST-685
C2-3510-BN-603
C2-3510-FE-621
C2-3510-ZM-608
C2-3510-ME-011
C2-3510-CH-602
THERMAL OIL HEATER
HEATER
PRIMARY PUMP SKID
EXPANSION / DRAIN
SYSTEM
NITROGEN BLANKET
MANIFOLD
MO CONCENTRATE
DRYER SCRUBBER
HEATER SECONDARY SKID
C2-3510-ST-681
C2-3510-DR-601
3510
03183
II
3510
03183
XA FAULT
J/SP
FI
SCRUBBER OVERFLOW
MO MANIFOLD WASH WATER
RETURN TANK,
2259 3500-25J-026
SCRUBBER BLOWDOWN
MO MANIFOLD WASH WATER
RETURN TANK,
2260 3500-25J-026
SCRUBBER DRAIN
MO MANIFOLD WASH WATER
RETURN TANK,
2261 3500-25J-026
SCRUBBER DRAIN
MO MANIFOLD WASH WATER
RETURN TANK,
2262 3500-25J-026
PROCESS WATER
2273
3900-25J-014
NITROGEN
NITROGEN VAPOURIZER,
C2-3510-ZM-528
2274
3500-25J-041
HEATING OIL
2275
MO CONCENTRATE
MO FILTER, C2-3510-FL-601
2256 3500-25J-026
MO CONCENTRATE
MO FILTER, C2-3510-FL-601
2257 3500-25J-026
T1
T1
T1
3510-OT-1011-C2H-3"-H
SIZE:
C2-3510-ZM-608
MO CONCENTRATE PACKAGING SYSTEM
SIZE:
C2-3510-ME-011
MOLY PACKAGING AREA FORKLIFT
3510-OT-1016-C2H-1"-P
3510-OT-1019-C2H-2"-H
SIZE:
C2-3510-ST-681
FILTERED MO CONCENTRATE HOPPER
3510-OT-1015-C2H-1"-P
3510-OT-1001-C2H-1"-N
3510-OT-1018-C2H-2"-H
3510-OT-1013-C2H-3"-H
3510-WR-1889-C1A-1"-N
3510-WR-1887-C1A-1"-N
3510-OT-1005-C2H-1"-H
3510-OT-1020-C2H-2"-H
SIZE:
MATERIAL:
MOTOR:
C2-3510-CV-601
MO CONCENTRATE DRYER SCREW FEEDER
3510-N2G-1014-C1D-1/4"-N
3510-WR-1888-C1A-1"-N
ES
3510-N2G-1015-C1D-1/4"-N
3510-AA-1005-S1A-4"-P
SIZE:
MATERIAL:
MOTOR:
C2-3510-DR-601
MO CONCENTRATE DRYER
3510-OT-1010-C2H-1"-H
3510-OT-1008-C2H-1-1/2"-N
3510-OT-1007-C2H-3"-H
3510-OT-1017-C2H-2"-H
SIZE:
C2-3510-ST-685
MOLY CONCENTRATE SCREW FEEDER FLEXIBLE JOINT PIECE
3510-AA-1004-S1A-6"-P
3510-OT-1006-C2H-1"-H
3510-OT-1012-C2H-1"-H
3510-OT-1003-C2H-1"-H
3510-OT-1004-C2H-1"-N
SIZE:
MATERIAL:
CAPACITY:
TRIM:
C2-3510-BN-603
DRIED MOLY CONCENTRATE STORAGE BIN
3510-OT-1007-C2H-3"-H
3510-OT-1023-C2H-2"-H
3510-OT-1018-C2H-2"-H
SIZE:
MATERIAL:
MOTOR:
C2-3510-CH-602
DRYING MO AREA HOIST
SIZE:
MATERIAL:
MOTOR:
C2-3510-FE-621
MO CONCENTRATE ROTARY VALVE
3510-OT-1021-C2H-2"-H
3510-WR-1886-C1A-1"-N
3510-OT-1017-C2H-2"-H
3510-OT-1022-C2H-2"-H
3510-OT-1024-C2H-3"-H
3510-OT-1009-C2H-3"-H
3510-WR-1885-C1A-1"-N
3510-OT-1014-C2H-1-1/2"-H
3510-OT-1013-C2H-3"-H
AG
KM
LT
ISSUED FOR CLIENT REVIEW
22-Dec-11
B
RP
ISSUED FOR COMBINED REVIEW
30-Jun-11
A
12/22/2011
K. MUNDY
A. GUNSON
A. REGNAULT
L. TAMELIN
12/21/2011
8:34:52
PM
WBS: 3510
B
PIPING AND INSTRUMENTATION DIAGRAM
MOLY PLANT
3500-25J-031
MO CONCENTRATE DRYING & PACKAGING
3510
03102
ZS
3510
03102
XA
OP/CL
C2-3510-TK-612
C2-3510-TK-612
C2-3510-TK-612
C2-3510-TK-612
MISMATCH
V
V
V
V
V V
3510
03105 B
WE
3510
03105 A
WE
3510
03105 A
WT
3510
03105 B
WT
3510
03105
WI
CHUTE
CHUTE
3510-AA-1003-S1A-6"-P
3510-OT-1002-C2H-1"-N
C2-3510-ZM-601 C2-3510-ZM-601 C2-3510-ZM-601 C2-3510-ZM-601
SIZE:
C2-3510-ZM-601
MO MEDIUM HEATING SYSTEM
VENDOR
VENDOR VENDOR VENDOR VENDOR
SIZE:
MOTOR:
C2-3510-DC-604
MO CONCENTRATE DRYER SCRUBBER
C2-3510-DC-604
VENDOR
VENDOR
C2-3510-ZM-601
D
4
F
B
A
3
2
1 5 6 8
E
7
C
REV.
APPROVED
CHK.
DES.
REV. DATE REVISION DESCRIPTION
CLIENT
LEAD ENGINEER
SCALE DRAWING NUMBER
CHECK DESIGN CHECK DRAWING
DESIGNED BY DRAWN BY
APPROVAL DATE
APPROVAL DATE
APPROVED
CHK.
DES.
REV. DATE REVISION DESCRIPTION REFERENCE DRAWING No.
1:100
0
1:200
5m
10m
0
5m
10m
15m
20m
1:500
10m
0
20m
30m
40m
50m
1:1000
0
100m
50m
1:20
0
0.5m
1m
1.5m
2m
0
1:25
0.5m
1m
1.5m
1:33
1/3
2.5m
2m
0
1m
2m
3m
0
1:50
1m
2m
3m
4m
5m
CAD FILE NAME: P:0CAD000SPEM**
MODEL UPDATED:
DWG. FILE UPDATED:
MANUAL CHANGES MADE: YES NO YES NO YES NO
PROJECT MANAGER
ENGINEERING MANAGER
AREA PROJECTENGINEER
REFERENCE DRAWINGS
SAFETY SHARE:
APPROVAL DATE
CONTRACT
NO.
SAFETY SHARE :
BA6CVA1.IGR
NOTICE: THIS DRAWING HAS NOT BEEN PUBLISHED AND IS THE SOLE
PROPERTY OF FLUOR AND IS LENT TO THE BORROWER FOR THEIR
CONFIDENTIAL USE ONLY, AND IN CONSIDERATION OF THE LOAN OF THIS
DRAWING, THE BORROWER PROMISES AND AGREES TO RETURN IT UPON
REQUEST AND AGREES THAT IT WILL NOT BE REPRODUCED, COPIED LENT
OR OTHERWISE DISPOSED OF DIRECTLY OR INDIRECTLY, NOR USED FOR
ANY OTHER PURPOSE OTHER THAN WHICH IT IS FURNISHED.
NONE
Apr 2011
240K-C2-
AG
KM
LT
ISSUED FOR CLIENT REVIEW
22-Dec-11
B
RP
ISSUED FOR COMBINED REVIEW
30-Jun-11
A
12/22/2011
K. MUNDY
A. GUNSON
A. REGNAULT
L. TAMELIN
12/22/2011
2:47:23
PM
WBS: 3510
B
PIPING AND INSTRUMENTATION DIAGRAM
MOLY PLANT
3500-25J-032
SODIUM SILICATE STORAGE AND DISTRIBUTION
T1
H, P2
L, P2
LL, P1
3510
03283
XA
3510
03211
LE
3510
03211
LSH
3510
03211
LAH
3510
03283
II
3510
03212
LE
3510
03217
PI
3510
03282
XA
3510
03283
HS
J/SP
3510
03212
LT
3510
03212 A
LI
3510
03212
LI
3510
03282
II
3510
03282
HS
J/SP
3510
03221
FSH
3510
03221
FAH
M
3510
03204 B
FIT
3510
03204 B
FIC
3510
03204
FRIC
3510
03203
TE
3510
03203
TT
3510
03203
TI
3510
03201
LE
3510
03201
LSH
3510
03201
LAH
3510
03202
LE
3510
03202
LT
3510
03202 A
LI
3510
03202
LI
M
3510
03204 A
FIT
3510
03204 A
FIC
3510
03222
XL
FAULT
FAULT
O/F
VENDOR
ES
ES
3510
03204 A
FE
+
V
3510
03211
XA
+
V
C2-3510-PP-648
V
V
V
ES
V
V
V
3510
03215
PCV
+
C2-3510-PP-647
3510
03222
XA
+
ES
3" PL
3" PL
PL
1"
PL
1-1/2" PL
PL
1" PL
4"x3"
PL
SP
CH
3"x2"
4"x3"
CH
3510
03204 B
FE
+
BU
3510
03201
XA
+
3"x4"
3"x2"
3"x2"
3510
03204
FV
+
BU
FO
V
V
V
PL
1" PL
O/F
1-1/2"
1-1/2" 3"
3"
3510-WR-1890-C1A-3"-N
3510-RS-1001-S1B-3"-ET
3510-RS-1005-S1B-3"-ET
3510-RS-1009-S1B-3"-N
C2-3510-TK-606 C2-3510-PP-642
C2-3510-ZM-661
C2-3510-TK-624
SIZE:
MATERIAL:
MOTOR:
C2-3510-PP-642
SODIUM SILICATE TRANSFER PUMP
SIZE:
MATERIAL:
MOTOR:
C2-3510-ZM-661
SODIUM SILICATE INLINE MIXER
SIZE:
MATERIAL:
CAPACITY:
TRIM:
C2-3510-TK-606
SODIUM SILICATE STORAGE TANK
SIZE:
MATERIAL:
CAPACITY:
TRIM:
C2-3510-TK-624
SODIUM SILICATE DISTRIBUTION TANK
SIZE:
MATERIAL:
MOTOR:
C2-3510-PP-647
SODIUM SILICATE DISTRIBUTION PUMP NO. 1
SIZE:
MATERIAL:
MOTOR:
C2-3510-PP-648
SODIUM SILICATE DISTRIBUTION PUMP NO. 2
C2-3510-ES-601
SIZE:
C2-3510-ES-601
MOLY REAGENTS AREA SAFETY SHOWER
N2
N8
N1
N1
N8
N9
N4
H, P2
L, P2
LL, P1
DOMESTIC WATER
2808 5400-25J-022
3510-WD-1034-G1A-1-1/2"-N
3510
03206
FE
+
3510
03206
FIC
3510
03206
FI
ES
H, P2
L, P2
3510
03216
FE
+
3510
03216
FIC
3510
03216
FI
ES
H, P2
L, P2
3510
03226
FE
+
3510
03226
FIC
3510
03226
FI
ES
H, P2
L, P2
MO 3RD CLEANER FEED
PUMPBOX, C2-3510-BX-610
2227 3500-25J-017
MO 5TH CLEANER FEED
PUMPBOX, C2-3510-BX-612
2615 3500-25J-022
MO 1ST CLEANER
CONDITIONING TANK,
2810 3500-25J-007
C2-3510-TK-603
C2-3510-ZM-643
C2-3510-ZM-644
C2-3510-ZM-645
SIZE:
C2-3510-ZM-645
SODIUM SILICATE INJECTOR NO.3
SIZE:
C2-3510-ZM-644
SODIUM SILICATE INJECTOR NO.2
SIZE:
C2-3510-ZM-643
SODIUM SILICATE INJECTOR NO.1
TO FLOOR
TO FLOOR
3510-RS-1014-S1B-2"-N
3510-RS-1015-S1B-2"-N
3510-RS-1016-S1B-2"-N
T1
T1
3510
03281
HS
3510
03281
II
3510
03281
XA FAULT
J/SP
V
V
V
V
FC
S
S
S
V
V
V
V
V
V
V
V
V
3510-RS-1004-S1B-4"-N
3510-RS-1006-S1B-3"-N
3510-RS-1009-S1B-1"-N
3510-RS-1010-S1B-2"-N
3510-RS-1013-S1B-2"-N
3510-RS-1012-S1B-2"-N
VENDOR
VENDOR
VENDOR
3510
03226
FE
+
3510
03226
FIC
3510
03226
FI
ES
H, P2
L, P2
MO CLEANER SCAV.
FLOTATION, C2-3510-CF-721
3793 3500-25J-012
C2-3510-ZM-652
3510-RS-1024-S1B-2"-N
S
V
V
V
3510-RS-1019-S1B-2"-N
VENDOR
SIZE:
C2-3510-ZM-652
SODIUM SILICATE INJECTOR NO.4
N3
N10
N2
N6
N5
N7
N4
N3
N5 N6
N7
N9
PROCESS WATER
4222 3900-25J-016
S
3510
03336
FIC
3510
03336
FI
3510
03307
PI
3510
03321
FI
3510
03321
FIC
3510
03311
FIC
3510
03311
FI
3510
03303
LS
3510
03302
LSH
3510
03302
LAH
P2
3510
03304
XL
3510
03301
LE
3510
03301
LT
3510
03301 A
LI
3510
03301 A
LI
3510
03306
PDI
S
3510
03333
FI
3510
03333
FIC
S
3510
03341
FIC
3510
03341
FI
3510
03309
ZS
OP/CL
3510
03309
XA MISMATCH
3510
03381
II
3510
03381
XA
3510
03381
HS
J/SP
3510
03310
FI
3510
03310
FIC
S
S
S
3510
03334
FI
S
S
3510
03335
FI
3510
03335
FIC
3510
03334
FIC
S
3510
03351
FI
S
S
3510
03351
FIC
3510
03331
FI
3510
03331
FIC
3510
03332
FI
3510
03332
FIC
VENDOR
PLANT AIR
2880 3900-25J-017
MO 1ST CLEANER CONC.
LAUNDER, C2-3510-LA-615
2882 3500-25J-007
ROUGHER SCAV. CONC.
LAUNDER, C2-3510-LA-612
2885 3500-25J-005
CL SCAV. CONC. LAUNDER
NO. 2, C2-3410-LA-515
4117 3400-25J-047
ROUGHER FLOTATION CONC.
LAUNDER, C2-3510-LA-600
3587 3500-25J-003
CU COLUMN CELL NO. 4,
C2-3430-CM-504
4120 3400-25J-035
CU COLUMN CELL NO. 5,
C2-3430-CM-505
4119 3400-25J-036
CU COLUMN CELL NO. 6,
C2-3430-CM-506
4121 3400-25J-036
CL SCAV. CONC. LAUNDER
NO. 1, C2-3410-LA-512
4113 3400-25J-047
CU COLUMN CELL NO. 1,
C2-3430-CM-501
4115 3400-25J-033
CU COLUMN CELL NO. 2,
C2-3430-CM-502
4114 3400-25J-034
CU COLUMN CELL NO. 3,
C2-3430-CM-503
4116 3400-25J-034
ISO CONTAINER
HH, P1
H, P2
L, P2
H, P2
L, P2
VENDOR
FAULT
H, P2
L, P2
VENDOR
H, P2
L, P2
VENDOR
VENDOR
H, P2
L, P2
VENDOR
H, P2
L, P2
VENDOR
H, P2
L, P2
VENDOR
H, P2
L, P2
VENDOR
H, P2
L, P2
H, P2
L, P2
VENDOR
VENDOR
VENDOR
H, P2
L, P2
H, P2
L, P2
3510-RC-1144-C1D-1-1/2"-N
1"x3/8"
3510
03351
FE
+
ES
C2-3510-ZM-650
ES
3510-RC- -C1D-1"-N
3510-RC-1144-C1D-1"-N
V
C2-3510-ZM-653
V
V
V
V
V
V
V
ES
V
3510-RC-1152-C1D-1"-N
3510-RC- -C1D-1"-N
3510-RC- -C1D-1"-N
3510-RC-1147-C1D-1"-N
SIZE:
C2-3510-ZM-650
DEFOAMER INJECTOR NO. 5
V
3510-RC- -C1D-1"-N
3510
03332
FE
+
SIZE:
C2-3510-ZM-652.
DEFOAMER INJECTOR NO. 7
SIZE:
C2-3510-ZM-651
DEFOAMER INJECTOR NO. 6
ES
3510
03331
FE
+
C2-3510-ZM-652.
C2-3510-ZM-651
SIZE:
C2-3510-ZM-653
DEFOAMER INJECTOR NO. 8
V
V
V
V
V
V
V
3510
03333
FE
+
3510-RC- -C1D-1"-N
V
SIZE:
C2-3510-ZM-655
DEFOAMER INJECTOR NO. 10
SIZE:
C2-3510-ZM-656
DEFOAMER INJECTOR NO. 11
SIZE:
C2-3510-ZM-654
DEFOAMER INJECTOR NO. 9
3510-RC- -C1D-1"-N
3510-RC- -C1D-1"-N
3510-RC- -C1D-1"-N
3510-RC- -C1D-1"-N
3510-RC- -C1D-1"-N
V
V
C2-3510-ZM-654
C2-3510-ZM-655
3510
03334
FE
+
ES
3510
03335
FE
+
ES
C2-3510-ZM-656
3510-RC- -C1D-1"-N
ES
V
3510
03336
FE
+
V
V
V
V
V
V
V
V
V
FI
3510
03309
XV
+
V
V
C2-3510-ZM-646
ES
3510
03310
FE
+
3510-RC-1166-C1D-1"-N
3510-RC-1165-C1D-1"-N
SIZE:
C2-3510-ZM-646
DEFOAMER INJECTOR NO. 1
N10
N8
N9
AG
KM
LT
ISSUED FOR CLIENT REVIEW
22-Dec-11
B
RP
ISSUED FOR COMBINED REVIEW
13-Jul-11
A
12/22/2011
K. MUNDY
A. GUNSON
A. REGNAULT
L. TAMELIN
12/22/2011
2:49:50
PM
WBS: 3510
B
PIPING AND INSTRUMENTATION DIAGRAM
MOLY PLANT
3500-25J-033
MOLY DEFOAMER STORAGE AND DISTRIBUTION
M1
N11
N5 N12 N3 N13 N6 N14 N4 N7
3510
03305
PCV
+
3510
03308
PCV
+
3510
03304
XA
+
4"x2"
3"x1"
3"x1/2"
N1
3"
3"
3"
3"
3"
3"
3"
3"
4" 4" 4" 20"
24"
3"
V
V V
V V
V
V
V V
V
1-1/2"x1/2"
3510-RC-1143-C1D-1"-N
3510-RC-1145-C1D-1"-N
3510-RC-1146-C1D-1"-N 3510-RC-1151-C1D-1"-N
3510-RC-1150-C1D-1"-N
3510-RC-1142-C1D-3"-N
C2-3510-TK-608 C2-3510-PP-646
C2-3510-ZM-647
C2-3510-ZM-648
SIZE:
C2-3510-ZM-647
DEFOAMER INJECTOR NO. 2
SIZE:
C2-3510-ZM-648
DEFOAMER INJECTOR NO. 3
SIZE:
MATERIAL:
MOTOR:
C2-3510-PP-646
DEFOAMER DISTRIBUTION PUMP
SIZE:
MATERIAL:
CAPACITY:
TRIM:
C2-3510-TK-608
DEFOAMER STORAGE TANK
3510
03311
FE
+
ES
3510
03321
FE
+
ES
C2-3510-ZM-649
SIZE:
C2-3510-ZM-649
DEFOAMER INJECTOR NO. 4
3510-RC- -C1D-2"-N
3510-RC- -C1D-1"-N 3510-RC- -C1D-1"-N
ES
V
3510
03341
FE
+
V
V
3510-AP-1226-C1D-2"-N
D
4
F
B
A
3
2
1 5 6 8
E
7
C
REV.
APPROVED
CHK.
DES.
REV. DATE REVISION DESCRIPTION
CLIENT
LEAD ENGINEER
SCALE DRAWING NUMBER
CHECK DESIGN CHECK DRAWING
DESIGNED BY DRAWN BY
APPROVAL DATE
APPROVAL DATE
APPROVED
CHK.
DES.
REV. DATE REVISION DESCRIPTION REFERENCE DRAWING No.
1:100
0
1:200
5m
10m
0
5m
10m
15m
20m
1:500
10m
0
20m
30m
40m
50m
1:1000
0
100m
50m
1:20
0
0.5m
1m
1.5m
2m
0
1:25
0.5m
1m
1.5m
1:33
1/3
2.5m
2m
0
1m
2m
3m
0
1:50
1m
2m
3m
4m
5m
CAD FILE NAME: P:0CAD000SPEM**
MODEL UPDATED:
DWG. FILE UPDATED:
MANUAL CHANGES MADE: YES NO YES NO YES NO
PROJECT MANAGER
ENGINEERING MANAGER
AREA PROJECTENGINEER
REFERENCE DRAWINGS
SAFETY SHARE:
APPROVAL DATE
CONTRACT
NO.
SAFETY SHARE :
BA6CVA1.IGR
NOTICE: THIS DRAWING HAS NOT BEEN PUBLISHED AND IS THE SOLE
PROPERTY OF FLUOR AND IS LENT TO THE BORROWER FOR THEIR
CONFIDENTIAL USE ONLY, AND IN CONSIDERATION OF THE LOAN OF THIS
DRAWING, THE BORROWER PROMISES AND AGREES TO RETURN IT UPON
REQUEST AND AGREES THAT IT WILL NOT BE REPRODUCED, COPIED LENT
OR OTHERWISE DISPOSED OF DIRECTLY OR INDIRECTLY, NOR USED FOR
ANY OTHER PURPOSE OTHER THAN WHICH IT IS FURNISHED.
NONE
Apr 2011
240K-C2-
SET:
SET:
T1
T1
O/F
VENDOR
3510
03401
LI
3510
03401
LT 3510
03407
PI
3510
03482
XA
3510
03481
HS
J/SP
3510
03406
PDI
3510
03482
HS
J/SP
S
3510
03408
FIC
3510
03401
LI
HH, P1
H, P2
L, P2
3510
03404
XL
3910
03482
II
3510
03401
LE
3510
03403
LS
3510
03481
II
3510
03402
LAH
3510
03481
XA
3510
03402
LSH
FAULT
VENDOR
P2
FAULT
4"
N5
V
N10
4"x3"
3"
C2-3510-TK-665
N13
N12
1-1/2"x1"
V
3"
N8 3"
N11
1"x1"
AG
KM
LT
ISSUED FOR CLIENT REVIEW
22-Dec-11
B
NOT USED
A
12/22/2011
K. MUNDY
A. GUNSON
A. REGNAULT
L. TAMELIN
12/22/2011
2:51:03
PM
WBS: 3510
B
PIPING AND INSTRUMENTATION DIAGRAM
MOLY PLANT
3500-25J-034
MO COLLECTOR STORAGE AND DISTRIBUTION
V
4"
N3
V
V
V
N4
3510-RC-1164-C1D-1"-N
20"
C2-3510-PP-643
N1
V
3"
N2
3"
V
3"x1-1/2"
N9
3"
3"
3510-RC-1160-C1D-3"-N
C2-3510-PP-644
N6
V
V
3510
03405
PCV
+
3"
M1
N7
3"x1"
V
3"
3510
03404
XA
+
3"
V
V
V
3510- -1161-C1D-3"-N
24"
3510-RC-1163-C1D-1"-N
3510
03408
FE
+
D
4
F
B
A
3
2
1 5 6 8
E
7
C
REV.
APPROVED
CHK.
DES.
REV. DATE REVISION DESCRIPTION
CLIENT
LEAD ENGINEER
SCALE DRAWING NUMBER
CHECK DESIGN CHECK DRAWING
DESIGNED BY DRAWN BY
APPROVAL DATE
APPROVAL DATE
APPROVED
CHK.
DES.
REV. DATE REVISION DESCRIPTION REFERENCE DRAWING No.
1:100
0
1:200
5m
10m
0
5m
10m
15m
20m
1:500
10m
0
20m
30m
40m
50m
1:1000
0
100m
50m
1:20
0
0.5m
1m
1.5m
2m
0
1:25
0.5m
1m
1.5m
1:33
1/3
2.5m
2m
0
1m
2m
3m
0
1:50
1m
2m
3m
4m
5m
CAD FILE NAME: P:0CAD000SPEM**
MODEL UPDATED:
DWG. FILE UPDATED:
MANUAL CHANGES MADE: YES NO YES NO YES NO
PROJECT MANAGER
ENGINEERING MANAGER
AREA PROJECTENGINEER
REFERENCE DRAWINGS
SAFETY SHARE:
APPROVAL DATE
CONTRACT
NO.
SAFETY SHARE :
BA6CVA1.IGR
NOTICE: THIS DRAWING HAS NOT BEEN PUBLISHED AND IS THE SOLE
PROPERTY OF FLUOR AND IS LENT TO THE BORROWER FOR THEIR
CONFIDENTIAL USE ONLY, AND IN CONSIDERATION OF THE LOAN OF THIS
DRAWING, THE BORROWER PROMISES AND AGREES TO RETURN IT UPON
REQUEST AND AGREES THAT IT WILL NOT BE REPRODUCED, COPIED LENT
OR OTHERWISE DISPOSED OF DIRECTLY OR INDIRECTLY, NOR USED FOR
ANY OTHER PURPOSE OTHER THAN WHICH IT IS FURNISHED.
NONE
Apr 2011
240K-C2-
3510
03408
FI
V
V
V
VENDOR
SIZE:
MATERIAL:
CAPACITY:
TRIM:
C2-3510-TK-665
MOLY COLLECTOR TANK
SIZE:
MATERIAL:
MOTOR:
C2-3510-PP-644
MOLY COLLECTOR PUMP NO. 2
SIZE:
MATERIAL:
MOTOR:
C2-3510-PP-643
MOLY COLLECTOR PUMP NO. 1
SIZE:
MOTOR:
C2-3510-ZM-640
MO COLLECTOR INJECTOR
V
V
3510-RC-1162-C1D-1-1/2"-N
C2-3510-ZM-640
MO COLLECTOR
MO 1ST CLEANER COND.
TANK, C2-3510-TK-603
2486 3500-25J-007
T8
T1
T1
TO
FLOOR
H, P2
L, P2
LL, P1
3510
03583
XA
3510
03584
XA
3510
03511
LE
3510
03511
LSH
3510
03515
LI
3510
03511
LAH
3510
03515 A
LI
3510
03583
II
3510
03512
LE
3510
03516
PI
3510
03582
XA
3510
03507
FIT
3510
03583
HS
J/SP
M
3510
03585
XA
3510
03584
II
3510
03512
LT
3510
03512 A
LI
3510
03512
LI
3510
03515
LT
3510
03585
HS
J/SP
3510
03582
II
3510
03515
LE
3510
03584
HS
J/SP
3510
03582
HS
J/SP
3510
03585
II
3510
03517
PDI
3510
03521
FSH
3510
03521
FAH
M
3510
03504 B
FIT
3510
03504 B
FIC
3510
03504
FRIC
3510
03503
TE
TO FLOOR
3510
03503
TT
3510
03503
TI
3510
03501
LE
3510
03501
LSH
3510
03501
LAH
3510
03502
LE
3510
03502
LT
3510
03502 A
LI
3510
03502
LI
M
3510
03504 A
FIT
3510
03504 A
FIC
3510
03587
HS
J/SP
3510
03587
XA
3510
03587
II
3510
03505
LE
3510
03505
LIT
3510
03505
LI
3510
03586
HS
J/SP
3510
03586
II
3510
03586
XA
3510
03508
AIT
3510
03508
AE
3510
03508
AI
HH, P1
3510
03522
XL
FAULT
FAULT
HEATER
FAULT
FAULT
FAULT
H2S
TO
FLOOR
O/F
S1B
VENDOR
1" PL
4"x3"
ES
ES
3510
03504 A
FE
+
V
3510
03511
XA
+
3510
03506
XV
+
FC
3"x2"
C2-3510-CN-604
N2
V
C2-3510-PP-164
V
V
V
ES
3510
03507
FE
+
ES
V
N1
C2-3510-PP-160
V
V
3510
03515
PCV
+
C2-3510-PP-163
3510
03522
XA
+
ES
FC
3510
03517
ZV
+
ES
3" PL
3" PL
3" PL
PL
1"
PL
1-1/2" PL
PL
1" PL
4"x3"
PL
SP-3500-006
CH
3"x2"
4"x3"
CH
3510
03504 B
FE
+
BU
3510
03501
XA
+
6"x4"
3"x2"
3"x2"
3510
03504
FV
+
10"x8"
BU
PL
PL
PL
FO
V
V
V
BA
PL
1" PL
PL
D
4
F
B
A
3
2
1 5 6 8
E
7
C
REV.
APPROVED
CHK.
DES.
REV. DATE REVISION DESCRIPTION
CLIENT
LEAD ENGINEER
SCALE DRAWING NUMBER
CHECK DESIGN CHECK DRAWING
DESIGNED BY DRAWN BY
APPROVAL DATE
APPROVAL DATE
APPROVED
CHK.
DES.
REV. DATE REVISION DESCRIPTION REFERENCE DRAWING No.
1:100
0
1:200
5m
10m
0
5m
10m
15m
20m
1:500
10m
0
20m
30m
40m
50m
1:1000
0
100m
50m
1:20
0
0.5m
1m
1.5m
2m
0
1:25
0.5m
1m
1.5m
1:33
1/3
2.5m
2m
0
1m
2m
3m
0
1:50
1m
2m
3m
4m
5m
CAD FILE NAME: P:0CAD000SPEM**
MODEL UPDATED:
DWG. FILE UPDATED:
MANUAL CHANGES MADE: YES NO YES NO YES NO
PROJECT MANAGER
ENGINEERING MANAGER
AREA PROJECTENGINEER
REFERENCE DRAWINGS
SAFETY SHARE:
APPROVAL DATE
CONTRACT
NO.
SAFETY SHARE :
BA6CVA1.IGR
NOTICE: THIS DRAWING HAS NOT BEEN PUBLISHED AND IS THE SOLE
PROPERTY OF FLUOR AND IS LENT TO THE BORROWER FOR THEIR
CONFIDENTIAL USE ONLY, AND IN CONSIDERATION OF THE LOAN OF THIS
DRAWING, THE BORROWER PROMISES AND AGREES TO RETURN IT UPON
REQUEST AND AGREES THAT IT WILL NOT BE REPRODUCED, COPIED LENT
OR OTHERWISE DISPOSED OF DIRECTLY OR INDIRECTLY, NOR USED FOR
ANY OTHER PURPOSE OTHER THAN WHICH IT IS FURNISHED.
NONE
Apr 2011
240K-C2-
1/2"
PL
1/2"
PL
SP-3500-007
1/2" BA
10"x6"
O/F
CH
SP-3500-005
PL
1-1/2" PL
1-1/2"
1-1/2" 3"
6"x3"
1-1/2"
1-1/2"
3"
14"x8"
3510-WR-1306-C1A-4"-N
3510-WR-1306-C1A-4"-N
3510-WR-1891-C1A-3"-N
3510-WR-1892-C1A-1"-N
3510-RS-1036-S1B-3"-N
3510-RS-1017-S1B-3"-H
3510-RS-1021-S1B-3"-N
3510-RS-1034-S1B-8"-N
3510-RS-1040-S1B-3"-N
3510-RS-1025-S1B-3"-N
3510-RS-1033-S1B-3"-N
3510-RS-1038-S1B-3"-N
3510-RS-1039-S1B-3"-N
3510-RS-1037-S1B-1-1/2"-N
NAHS SOLUTION
NAHS DISTRIBUTION
1840 3500-25J-037
3510-RS-1026-S1B-2"-N
DOMESTIC WATER
2759
5400-25J-022
3510-WD-1019-G1A-1-1/2"-N
H, P2
L, P2
LL, P1
NAHS AREA SUMP CONT.
CU-MO THICKENER FEED
BOX, C2-3510-BK-003
1861 3500-25J-001
NAHS AREA SUMP CONT.
TAILING COLLECTION
LAUNDER NO.1,
2311 3700-25J-001
PROCESS WATER
2760 3900-25J-016
C2-3510-TK-617 C2-3510-PP-161
C2-3510-ZM-209
C2-3510-PP-165
C2-3510-TK-618
C2-3510-TK-616
C2-3510-AG-616
C2-3510-ZM-208
SIZE:
MOTOR:
C2-3510-CN-604
NAHS JIB CRANE
C2-3510-CH-604
SIZE:
MOTOR:
C2-3510-CH-604
NAHS HOIST
SIZE:
MATERIAL:
CAPACITY:
TRIM:
C2-3510-TK-616
NAHS MIXING TANK
SIZE:
MATERIAL:
MOTOR:
C2-3510-AG-616
NAHS MIXING TANK AGITATOR
SIZE:
MATERIAL:
MOTOR:
C2-3510-PP-161
NAHS TRANSFER PUMP NO. 2
SIZE:
MATERIAL:
MOTOR:
C2-3510-PP-160
NAHS TRANSFER PUMP NO. 1
SIZE:
MATERIAL:
MOTOR:
C2-3510-ZM-209
NAHS INLINE MIXER
SIZE:
MATERIAL:
CAPACITY:
TRIM:
C2-3510-TK-617
NAHS STORAGE TANK
SIZE:
MATERIAL:
CAPACITY:
TRIM:
C2-3510-TK-618
NAHS DISTRIBUTION TANK
SIZE:
MATERIAL:
MOTOR:
C2-3510-PP-163
NAHS DISTRIBUTION PUMP NO. 1
SIZE:
MATERIAL:
MOTOR:
C2-3510-PP-164
NAHS DISTRIBUTION PUMP NO. 2
C2-3510-ES-603
SIZE:
C2-3510-ES-603
NAHS AREA SAFETY SHOWER
SIZE:
MATERIAL:
MOTOR:
C2-3510-PP-165
NAHS AREA SUMP PUMP
SIZE:
C2-3510-ZM-208
NAHS FEED CHUTE
N2
N5
N8 N1
N4 N6
H, P2
L, P2
LL, P1
N1
N8
N3
N7
N9 N11 N4
H, P2
L, P2
LL, P1
AG
KM
LT
ISSUED FOR CLIENT REVIEW
22-Dec-11
B
RP
ISSUED FOR COMBINED REVIEW
30-Jun-11
A
12/22/2011
K. MUNDY
A. GUNSON
A. REGNAULT
L. TAMELIN
12/21/2011
8:24:56
PM
WBS: 3510
B
PIPING AND INSTRUMENTATION DIAGRAM
MOLY PLANT
3500-25J-035
NAHS STORAGE AND PREPARATION
T1
T1
T1
3510
03517
XA
3510
03517
ZS
OP/CL
FAULT
3510
03507
FQI
3510
03506
ZS
3510
03506
XA
OP/CL
V
V
V
V
3510
03507
FI
3510-RS-1035-S1B-6"-N
3510-RS-1020-S1B-4"-N
3510-RS-1022-S1B-6"-H
3510-RS-1032-S1B-4"-N
C2-3510-LA-001
3510-RS-1027-S1B-1"-N
C2-3510-DC-603
SIZE:
MOTOR:
C2-3510-DC-603
NAHS SCRUBBER SYSTEM
N9
N4
N3
N11
N10
N7
N6
N5
N6
N10
N2
AG
KM
LT
ISSUED FOR CLIENT REVIEW
22-Dec-11
B
NOT USED
A
12/22/2011
K. MUNDY
A. GUNSON
A. REGNAULT
L. TAMELIN
12/21/2011
8:22:58
PM
WBS: 3510
B
PIPING AND INSTRUMENTATION DIAGRAM
MOLY PLANT
3500-25J-036
CO2 GENERATION AND DISTRIBUTION
D
4
F
B
A
3
2
1 5 6 8
E
7
C
REV.
APPROVED
CHK.
DES.
REV. DATE REVISION DESCRIPTION
CLIENT
LEAD ENGINEER
SCALE DRAWING NUMBER
CHECK DESIGN CHECK DRAWING
DESIGNED BY DRAWN BY
APPROVAL DATE
APPROVAL DATE
APPROVED
CHK.
DES.
REV. DATE REVISION DESCRIPTION REFERENCE DRAWING No.
1:100
0
1:200
5m
10m
0
5m
10m
15m
20m
1:500
10m
0
20m
30m
40m
50m
1:1000
0
100m
50m
1:20
0
0.5m
1m
1.5m
2m
0
1:25
0.5m
1m
1.5m
1:33
1/3
2.5m
2m
0
1m
2m
3m
0
1:50
1m
2m
3m
4m
5m
CAD FILE NAME: P:0CAD000SPEM**
MODEL UPDATED:
DWG. FILE UPDATED:
MANUAL CHANGES MADE: YES NO YES NO YES NO
PROJECT MANAGER
ENGINEERING MANAGER
AREA PROJECTENGINEER
REFERENCE DRAWINGS
SAFETY SHARE:
APPROVAL DATE
CONTRACT
NO.
SAFETY SHARE :
BA6CVA1.IGR
NOTICE: THIS DRAWING HAS NOT BEEN PUBLISHED AND IS THE SOLE
PROPERTY OF FLUOR AND IS LENT TO THE BORROWER FOR THEIR
CONFIDENTIAL USE ONLY, AND IN CONSIDERATION OF THE LOAN OF THIS
DRAWING, THE BORROWER PROMISES AND AGREES TO RETURN IT UPON
REQUEST AND AGREES THAT IT WILL NOT BE REPRODUCED, COPIED LENT
OR OTHERWISE DISPOSED OF DIRECTLY OR INDIRECTLY, NOR USED FOR
ANY OTHER PURPOSE OTHER THAN WHICH IT IS FURNISHED.
NONE
Apr 2011
240K-C2-
CO2 GAS
MO CONDITIONING TANK,
C2-3510-TK-601
3316 3500-25J-002
CO2 GAS
MO 1ST CLEANER TANK,
C2-3510-TK-603
3341 3500-25J-007
C2-3510-VS-080
SIZE:
C2-3510-VS-080
LIQUID CO2 STORAGE TANK
SIZE:
C2-3510-ZM-527
CO2 VAPORIZER
C2-3510-ZM-527
3510-PG-1001-CIA-2"-N
3510-PG-1002-CIA-2"-N
VENDOR
D
4
F
B
A
3
2
1 5 6 8
E
7
C
REV.
APPROVED
CHK.
DES.
REV. DATE REVISION DESCRIPTION
CLIENT
LEAD ENGINEER
SCALE DRAWING NUMBER
CHECK DESIGN CHECK DRAWING
DESIGNED BY DRAWN BY
APPROVAL DATE
APPROVAL DATE
APPROVED
CHK.
DES.
REV. DATE REVISION DESCRIPTION REFERENCE DRAWING No.
1:100
0
1:200
5m
10m
0
5m
10m
15m
20m
1:500
10m
0
20m
30m
40m
50m
1:1000
0
100m
50m
1:20
0
0.5m
1m
1.5m
2m
0
1:25
0.5m
1m
1.5m
1:33
1/3
2.5m
2m
0
1m
2m
3m
0
1:50
1m
2m
3m
4m
5m
CAD FILE NAME: P:0CAD000SPEM**
MODEL UPDATED:
DWG. FILE UPDATED:
MANUAL CHANGES MADE: YES NO YES NO YES NO
PROJECT MANAGER
ENGINEERING MANAGER
AREA PROJECTENGINEER
REFERENCE DRAWINGS
SAFETY SHARE:
APPROVAL DATE
CONTRACT
NO.
SAFETY SHARE :
BA6CVA1.IGR
NOTICE: THIS DRAWING HAS NOT BEEN PUBLISHED AND IS THE SOLE
PROPERTY OF FLUOR AND IS LENT TO THE BORROWER FOR THEIR
CONFIDENTIAL USE ONLY, AND IN CONSIDERATION OF THE LOAN OF THIS
DRAWING, THE BORROWER PROMISES AND AGREES TO RETURN IT UPON
REQUEST AND AGREES THAT IT WILL NOT BE REPRODUCED, COPIED LENT
OR OTHERWISE DISPOSED OF DIRECTLY OR INDIRECTLY, NOR USED FOR
ANY OTHER PURPOSE OTHER THAN WHICH IT IS FURNISHED.
NONE
Apr 2011
240K-C2-
AG
KM
LT
ISSUED FOR CLIENT REVIEW
22-Dec-11
B
NOT USED
A
12/22/2011
K. MUNDY
A. GUNSON
A. REGNAULT
L. TAMELIN
12/22/2011
3:05:22
PM
WBS: 3510
B
PIPING AND INSTRUMENTATION DIAGRAM
MOLY PLANT
3500-25J-037
NAHS DISTRIBUTION
C2-3510-ZM-639
C2-3510-ZM-638
3510
03712
FIC
C2-3510-ZM-665
3510
03712
FE
+
C2-3510-ZM-637
C2-3510-ZM-636
3510-RS-1063-S1B-1"-N
3510-RS-1064-S1B-1"-N
VENDOR
3510-RS-1065-S1B-1"-N
ES
3510-RS-1066-S1B-1"-N
3510-RS-1067-S1B-1"-N
3510-RS-1054-S1B-1"-N
H, P2
L, P2
3510-RS-1053-S1B-1"-N
3510-RS-1052-S1B-1"-N
3510-RS-1051-S1B-1"-N
3510-RS-1050-S1B-1"-N
3510
03711
FI
3510
03711
FIC
3510
03711
FE
+
VENDOR
ES
H, P2
L, P2
VENDOR
ES
3510
03709
FI
H, P2
L, P2
3510
03709
FIC
3510
03714
FI
3510
03709
FE
+
3510
03714
FIC
3510
03714
FE
+
VENDOR
ES
H, P2
L, P2
3510
03713
FI
3510
03713
FIC
3510
03713
FE
+
VENDOR
ES
H, P2
L, P2
3510
03712
FI
3510
03708
FIC
C2-3510-ZM-635
3510
03708
FE
+
C2-3510-ZM-634
C2-3510-ZM-633
3510-RS-1060-S1B-1"-N
3510-RS-1061-S1B-1"-N
VENDOR
3510-RS-1062-S1B-1"-N
ES
H, P2
L, P2
3510-RS-1049-S1B-1"-N
3510-RS-1048-S1B-1"-N
3510-RS-1047-S1B-1"-N
3510
03707
FI
3510
03707
FIC
3510
03707
FE
+
VENDOR
ES
H, P2
L, P2
3510
03706
FI
3510
03706
FIC
3510
03706
FE
+
VENDOR
ES
H, P2
L, P2
3510
03708
FI
S
S
S
S
S
S
SIZE:
C2-3510-ZM-639
NAHS REAGENT INJECTOR NO. 13
SIZE:
C2-3510-ZM-638
NAHS REAGENT INJECTOR NO. 12
SIZE:
C2-3510-ZM-665
NAHS REAGENT INJECTOR NO. 3
SIZE:
C2-3510-ZM-637
NAHS REAGENT INJECTOR NO. 11
SIZE:
C2-3510-ZM-636
NAHS REAGENT INJECTOR NO. 10
SIZE:
C2-3510-ZM-635
NAHS REAGENT INJECTOR NO. 9
SIZE:
C2-3510-ZM-634
NAHS REAGENT INJECTOR NO. 8
SIZE:
C2-3510-ZM-633
NAHS REAGENT INJECTOR NO. 7
S
S
C2-3510-ZM-632
C2-3510-ZM-664
3510
03703
FIC
C2-3510-ZM-631
3510
03703
FE
+
C2-3510-ZM-630
C2-3510-ZM-663
3510-RS-1055-S1B-1"-N
3510-RS-1056-S1B-1"-N
VENDOR
3510-RS-1057-S1B-1"-N
ES
3510-RS-1058-S1B-1"-N
3510-RS-1059-S1B-1"-N
3510-RS-1046-S1B-1"-N
H, P2
L, P2
3510-RS-1045-S1B-1"-N
3510-RS-1044-S1B-1"-N
3510-RS-1043-S1B-1"-N
3510-RS-1042-S1B-1"-N
3510
03702
FI
3510
03702
FIC
3510
03702
FE
+
VENDOR
ES
H, P2
L, P2
VENDOR
ES
3510
03701
FI
H, P2
L, P2
3510
03701
FIC
3510
03705
FI
3510
03701
FE
+
3510
03705
FIC
3510
03705
FE
+
VENDOR
ES
H, P2
L, P2
3510
03704
FI
3510
03704
FIC
3510
03704
FE
+
VENDOR
ES
H, P2
L, P2
3510
03703
FI
S
S
S
S
S
SIZE:
C2-3510-ZM-632
NAHS REAGENT INJECTOR NO. 6
SIZE:
C2-3510-ZM-664
NAHS REAGENT INJECTOR NO. 2
SIZE:
C2-3510-ZM-631
NAHS REAGENT INJECTOR NO. 5
SIZE:
C2-3510-ZM-630
NAHS REAGENT INJECTOR NO. 4
SIZE:
C2-3510-ZM-663
NAHS REAGENT INJECTOR NO. 1
3510-RS-1008-S1B-1-1/2"-N
3510-RS-1007-S1B-1-1/2"-N
NAHS SOLUTION
NAHS DISTRIBUTION PUMPS,
C2-3510-PP-163/164
1840 3500-25J-035
MO 5TH CLEANER FEED
PUMPBOX, C2-3510-BX-612
3569 3500-25J-022
MO 4TH CLEANER FEED
PUMPBOX, C2-3510-BX-611
3564 3500-25J-021
MO 3RD CLEANER FEED
PUMPBOX, C2-3510-BX-610
2225 3500-25J-017
MO 2ND CLEANER FLOTATION
CELL NO.5, C2-3510-CF-735
3578 3500-25J-016
MO 2ND CLEANER FEED
PUMPBOX, C2-3510-BX-609
3575 3500-25J-016
MO CLEANER SCAV. FLOT.
CELL NO.3, C2-3510-CF-723
3580 3500-25J-012
MO CLEANER SCAV. FLOT.
CELL NO.1, C2-3510-CF-721
3579 3500-25J-012
MO 1ST CLEANER FLOT. CELL
NO. 5, C2-3510-CF-705
3566 3500-25J-011
MO. 1ST CLEANER COND.
TANK, C2-3510-TK-603
2487 3500-25J-007
MO ROUGHER SCAN. FLOT.
CELL NO.6, C2-3510-CF-706
3562 3500-25J-005
MO. CONDITIONING TANK,
C2-3510-TK-601
3554 3500-25J-002
3510-RS-1026-S1B-2"-N
MO ROUGHER FLOT. CELL
NO.2, C2-3510-CF-702
3552 3500-25J-003
MO CLEANER SCAV. FLOT.
CELL NO.5, C2-3510-CF-725
3584 3500-25J-013
D
4
F
B
A
3
2
1 5 6 8
E
7
C
REV.
APPROVED
CHK.
DES.
REV. DATE REVISION DESCRIPTION
CLIENT
LEAD ENGINEER
SCALE DRAWING NUMBER
CHECK DESIGN CHECK DRAWING
DESIGNED BY DRAWN BY
APPROVAL DATE
APPROVAL DATE
APPROVED
CHK.
DES.
REV. DATE REVISION DESCRIPTION REFERENCE DRAWING No.
1:100
0
1:200
5m
10m
0
5m
10m
15m
20m
1:500
10m
0
20m
30m
40m
50m
1:1000
0
100m
50m
1:20
0
0.5m
1m
1.5m
2m
0
1:25
0.5m
1m
1.5m
1:33
1/3
2.5m
2m
0
1m
2m
3m
0
1:50
1m
2m
3m
4m
5m
CAD FILE NAME: P:0CAD000SPEM**
MODEL UPDATED:
DWG. FILE UPDATED:
MANUAL CHANGES MADE: YES NO YES NO YES NO
PROJECT MANAGER
ENGINEERING MANAGER
AREA PROJECTENGINEER
REFERENCE DRAWINGS
SAFETY SHARE:
APPROVAL DATE
CONTRACT
NO.
SAFETY SHARE :
BA6CVA1.IGR
NOTICE: THIS DRAWING HAS NOT BEEN PUBLISHED AND IS THE SOLE
PROPERTY OF FLUOR AND IS LENT TO THE BORROWER FOR THEIR
CONFIDENTIAL USE ONLY, AND IN CONSIDERATION OF THE LOAN OF THIS
DRAWING, THE BORROWER PROMISES AND AGREES TO RETURN IT UPON
REQUEST AND AGREES THAT IT WILL NOT BE REPRODUCED, COPIED LENT
OR OTHERWISE DISPOSED OF DIRECTLY OR INDIRECTLY, NOR USED FOR
ANY OTHER PURPOSE OTHER THAN WHICH IT IS FURNISHED.
NONE
Apr 2011
240K-C2-
AG
KM
LT
ISSUED FOR CLIENT REVIEW
22-Dec-11
B
NOT USED
A
12/22/2011
K. MUNDY
A. GUNSON
A. REGNAULT
L. TAMELIN
12/22/2011
3:06:20
PM
WBS: 3510
B
PIPING AND INSTRUMENTATION DIAGRAM
MOLY PLANT
3500-25J-041
N2 GENERATION AND DISTRIBUTION
NITROGEN
MO 2ND CLEANER FLOTATION
CELL NO. 5, C2-3510-CF-735
2834 3500-25J-016
NITROGEN
MO CLEANER SCAVENGER
FLOTATION CELL NO. 5,
2831 3500-25J-013
NITROGEN
MO 1ST CLEANER FLOTATION
CELL NO. 5, C2-3510-CF-715
2837 3500-25J-011
NITROGEN
MO ROUGHER FLOTATION
CELLS NO. 1 & NO. 2,
1864 3500-25J-003
NITROGEN
MO ROUGHER FLOTATION
CELLS NO. 4, C2-3510-CF-704
1849 3500-25J-004
NITROGEN
MO ROUGHER SCAVENGER
FLOTATION CELL NO. 6,
1869 3500-25J-005
C2-3510-CF-701/702
C2-3510-CF-706
C2-3510-CF-725
NITROGEN
MO 2ND CLEANER FLOTATION
CELLS NO. 1 & NO. 3,
2843 3500-25J-015
NITROGEN
MO CLEANER SCAVENGER
FLOTATION CELLS NO.2 &
2835 3500-25J-012
C2-3510-VS-081
C2-3510-ZM-528
SIZE:
MATERIAL:
CAPACITY:
TRIM:
C2-3510-VS-081
LIQUID NITROGEN TANK
SIZE:
C2-3510-ZM-528
NITROGEN VAPOURIZER
C2-3510-CF-733
NO.3, C2-3510-CF-723
NITROGEN
MO 1ST CLEANER FLOTATION
CELL NO. 1, C2-3510-CF-713
2848 3500-25J-007
3510-N2G-1013-C1D-1-1/2"-N
3510-N2G-1012-C1D-1-1/2"-N
3510-N2G-1010-C1D-1-1/2"-N
3510-N2G-1009-C1D-1-1/2"-N
3510-N2G-1007-C1D-1-1/2"-N
3510-N2G-1006-C1D-1-1/2"-N
3510-N2G-1004-C1D-2"-N
3510-N2G-1003-C1D-1-1/2"-N
3510-N2G-1002-C1D-2"-N
3510-N2G-1001-C1D-3"-N
NITROGEN
MO 2ND CLEANER FLOTATION
CELL NO. 1, C2-3510-CF-731
2844 3500-25J-015
3510-N2G-1011-C1D-1-1/2"-N
NITROGEN
MO.CLEANER
SCAV.FLOT.CELL NO. 2,
2836 3500-25J-012
NITROGEN
NITROGEN BLANKET
MANIFOLD
2274 3500-25J-031
NITROGEN
MO. 1 ST CLEANER,
C2-3510-CF-711
2850 3500-25J-007
3510-N2G-1005-C1D-1-1/2"-N
3510-N2G-1008-C1D-1-1/2"-N
3510-N2G-1014-C1D-1/4"-N
C2-3510-CF-722
VENDOR
T3
T3
3610
00123
XA
3610
00119
ZS
3610
00109
ZS
OP/CL
3610
00123
ZS
3610
00106
ZS
3610
00107
ZS
3610
00116
ZS
3610
00108
ZS
3610
00118
ZS
3610
00117
ZS
3610
00112
ZS
OP/CL
3610
00112
XA
3610
00117
XA
3610
00108
XA
3610
00118
XA
3610
00107
XA
3610
00106
XA
3610
00109
XA 3610
00119
XA
3610
00116
XA
3610
00184
XA
/
3610
00101
FIC
3610
00111
OI HH, P1
H, P2
3610
00110
ZI
3610
00101
FIT
3610
00183
II
3610
00114
FI
3610
00183
HS
M
3610
00113
PI
3610
00105
PIT
3610
00101
WQI
3610
00101
PIC
3610
00184
HS
3610
00101
DX
3610
00101
FY
3610
00102
LI H, P2
3610
00115
PIT
3610
00181
HS
J/SP
3610
00181
II
3610
00181
XA
3610
00105
PI
3610
00183
XA
3610
00101
DIC
3610
00101
DIT
MIN
3610
00102
LIT
3610
00101
PT
3610
00182
HS
J/SP
3610
00182
XA
3610
00182
II
M
3610
00122
ZS
3610
00122
XA
3610
00101
DE
3610
00102
LE
3610
00184
II
3610
00104
FI
3610
00115
PI
M
3610
00104
FIT
3610
00114
FIT
TO
FLOOR
TO
FLOOR
SUMP
GLAND SEAL WATER
2963 3900-25J-023
CONC. CLARIFIER O/F
CONC. CLARIFIER O/F PUMPS,
C2-3610-PP-008/009
2549 3600-25J-004
CU-MO THICKENER FEED
CU-MO CONC. THICKENER
FEED BOX C2-3510-BX-003
3311
3500-25J-001
PROCESS WATER
2278 3900-25J-016
COLUMN CONCENTRATE
COLUMN CONC. TRANSFER
PUMPS, C2-3430-PP-514/515
2213 3400-25J-041
CONC. LOADING SUMP
CONC. WASH LOADING
STATION SUMP PUMP,
2304 3600-25J-017
CU CONC. THICKENER O/F
CU CONC. THICKENER O/F
TANK, C2-3610-TK-005
1080 3600-25J-002
MO ROUGHER TAILING
MO ROUGHER TAILING
SAMPLER, C3-3510-SA-613
2248 3500-25J-025
CU FILTER AREA SUMP
CU CONC. FILTER AREA
SPILLAGE PUMP,
2164 3600-25J-006
PROCESS WATER
2281 3900-25J-016
CU CONC. AREA SUMP
CU CONC. THICKENER AREA
SPILLAGE PUMP,
2285 3600-25J-002
CONC. FLOCCULANT
CONCENTRATE FLOCCULANT
METERIG PUMPS
2279 3900-25J-007
CU CONC. THICKENER U/F
SAFETY SCREEN FEED BOX,
C2-3610-BX-041
2221 3600-25J-005
MIN
AFD
VENDOR
SUPPLY
MIN
MIN
SLOPE
C1A
LIFT POSITION
MIN.
L, P2
MASS FLOW
MIN
L, P2
LL,P1
C2-3610-PP-054
J/SP
L, P2
LL,P1
TO FLOOR
MIN
AFD
SELECT
NOTE 1
NOTE 1
NOTE 1
C2-3610-PP-035
R1A
SLOPE
C1A
TORQUE
TO FLOOR
NOTES:
1. *" ANSI BOLTING X 6" I.D. AT BOTH PUMP FLANGES.
R1A
MIN
MIN
L, P2
J/SP
MIN
FAULT
FAULT
OP/CL
OP/CL
FAULT
FAULT
OP/CL
OP/CL
OP/CL
OP/CL
OP/CL
OP/CL
OP/CL
FI
FI
SIZE:
MATERIAL:
MOTOR:
C2-3610-PP-045
CU CONCENTRATE THICKENER UNDERFLOW PUMP NO.1
3610
00123
XV
+
FI
ES
3610
00117
XV
+
ES
3510-SL-1558-R1A-8"-N
1-1/2"x1"
C2-3610-BX-001
3610-SL-1584-R1A-6"-N
V
3610
00114
FE
+
3610
00116
XV
+
6"x6"
3610-WG-1035-C1A-1"-N
3610
00101
FE
+
FI
ES
C2-3610-TK-001
4"x1-1/2"
3610-SL-1587-R1A-6"-N
3610-WR-1913-C1A-4"-N
FI
3610
00107
XV
+
SIZE:
MATERIAL:
CAPACITY:
TRIM:
C2-3610-BX-001
CU CONCENTRATE THICKENER FEED BOX
3610-RE-1020-C1A-2"-N
3610
00104
FE
+
FI
3610-SL-1589-R1A-6"-N
FI
3610
00118
XV
+
SIZE:
MATERIAL:
MOTOR:
C2-3610-PP-046
CU CONCENTRATE THICKENER UNDERFLOW PUMP NO.2
FI
SIZE:35 m DIA
C2-3610-TK-001
CU CONCENTRATE THICKENER TANK
3610
00106
XV
+
1"x1/2"
FI
ES
1-1/2"x1"
1-1/2"x1"
ES
4"x2"
3610-SL-1585-R1A-6"-N
3610-WR-1293-C1A-4"-N
3610-WG-1035-C1A-2"-N
3610-SL-1586-R1A-8"-N
3610
00108
XV
+
8"x6"
3610-SL-1579-C1B-4"-N
6"x6"
3610-WG-1074-C1A-1"-N
C2-3610-PP-046
3610
00112
XV
+
10"x6"
3610-SL-1583-R1A-12"-N
10"x6"
3430-SL-1308-R1A-12"-N
V
2"x1"
3610
00119
XV
+
1"x1/2"
6"x6"
C2-3610-PP-045
FI
3610-WR-1894-C1A-4"-N
3610-WR-1292-C1A-4"-N
3610
00122
XV
+
3610-WR-1895-C1A-4"-N
3610-WR-1896-C1A-8"-N
3610
00109
XV
+
AG
KM
LT
ISSUED FOR CLIENT REVIEW
22-Dec-11
B
RP
ISSUED FOR COMBINED REVIEW
30-Jun-11
A
12/22/2011
K. MUNDY
A. GUNSON
A. REGNAULT
L. TAMELIN
12/22/2011
1:54:35
PM
WBS: 3610
B
PIPING AND INSTRUMENTATION DIAGRAM
CU CONCENTRATE THICKENING
3600-25J-001
CU CONCENTRATE THICKENER
1-1/2"x1"
FI
D
4
F
B
A
3
2
1 5 6 8
E
7
C
REV.
APPROVED
CHK.
DES.
REV. DATE REVISION DESCRIPTION
CLIENT
LEAD ENGINEER
SCALE DRAWING NUMBER
CHECK DESIGN CHECK DRAWING
DESIGNED BY DRAWN BY
APPROVAL DATE
APPROVAL DATE
APPROVED
CHK.
DES.
REV. DATE REVISION DESCRIPTION REFERENCE DRAWING No.
1:100
0
1:200
5m
10m
0
5m
10m
15m
20m
1:500
10m
0
20m
30m
40m
50m
1:1000
0
100m
50m
1:20
0
0.5m
1m
1.5m
2m
0
1:25
0.5m
1m
1.5m
1:33
1/3
2.5m
2m
0
1m
2m
3m
0
1:50
1m
2m
3m
4m
5m
CAD FILE NAME: P:0CAD000SPEM**
MODEL UPDATED:
DWG. FILE UPDATED:
MANUAL CHANGES MADE: YES NO YES NO YES NO
PROJECT MANAGER
ENGINEERING MANAGER
AREA PROJECTENGINEER
REFERENCE DRAWINGS
SAFETY SHARE:
APPROVAL DATE
CONTRACT
NO.
SAFETY SHARE :
BA6CVA1.IGR
NOTICE: THIS DRAWING HAS NOT BEEN PUBLISHED AND IS THE SOLE
PROPERTY OF FLUOR AND IS LENT TO THE BORROWER FOR THEIR
CONFIDENTIAL USE ONLY, AND IN CONSIDERATION OF THE LOAN OF THIS
DRAWING, THE BORROWER PROMISES AND AGREES TO RETURN IT UPON
REQUEST AND AGREES THAT IT WILL NOT BE REPRODUCED, COPIED LENT
OR OTHERWISE DISPOSED OF DIRECTLY OR INDIRECTLY, NOR USED FOR
ANY OTHER PURPOSE OTHER THAN WHICH IT IS FURNISHED.
NONE
Apr 2011
240K-C2-
3610-SL-1588-R1A-6"-N
3610-SL-1582-C1B-4"-N
3610
00101
HY
V
MISMATCH
MISMATCH
MISMATCH
MISMATCH
MISMATCH
MISMATCH
MISMATCH
3610-SL-1582-C1A-12"-N
MISMATCH
MISMATCH
3510-SL-1820-R1A-4"-N
3620-SL-1634-C1B-4"-N
3620-SL-1811-R1B-16"-N
MISMATCH
CU CONCENTRATE FILTER
CONC. FILTER FEED PUMPS,
C2-3620-PP-049/050/051/066
3736 3600-25J-008
C2-3630-PP-037
CONTENTS
CONTENTS
CONTENTS
CONC CLARIFIER U/F
CLARIFIER UNDERFLOW
PUMPS, C2-3610-PP-016/017
4134 3600-25J-004
C2-3610-TM-001A
SIZE:
MOTOR:
C2-3610-TM-001A
CU CONCENTRATE THICKENER MECHANISM
3610-SL- -C1B-2"-N
FEED
3610
00124
XA
MISMATCH
3610
00124
ZS
OP/CL
FI
V1
3610
00124
VX
+
3610
00125
XV
+
V1
3610
00125
XA MISMATCH
3610
00125
ZS
OP/CL
3620-SL-1812-R1B-16"-N CU CONC FILTER FEED
SAFTEY SCREEN FEED BOX,
C2-3620-BX-041
4147 3600-25J-005
BYPASS
T3
T3
3610
00283
XA
3610
00283
II
3610
00204
LI
3610
00283
HS
J/SP
3610
00204
LIT
3610
00203
PI
3610
00282
XA
3610
00201
LT
3610
00201 A
LI
3610
00212
FIT
3610
00213
PI
3610
00202
FI
3610
00213
PIT
3610
00282
HS
J/SP
3610
00202
FIT
3610
00282
II
3610
00203
PIT
M
3610
00281
II
3610
00212
FI
M
3610
00281
XA
3610
00201
LE
3610
00204
LE
3610
00201
LIC
3610
00281
HS
J/SP
TO
FLOOR
SUMP
TO
FLOOR
SUMP
COMBINED THICKENER O/F
CONCENTRATE CLARIFIER
FEED BOX, C2-3610-BX-006
2842 3600-25J-003
CU THICKENER O/F
CU CONCENTRATE
THICKENER, C2-3610-TK-001
1080 3600-25J-001
CU-MO THICKENER O/F
CU-MO CONCENTRATE
THICKENER, C2-3500-TK-002
1081 3500-25J-001
CU CONC. AREA SUMP
CU CONCENTRATE
THICKENER FEED BOX,
2285 3600-25J-001
SLOPE
L, P2
L, P2
LL, P1
SLOPE
L, P2
LL, P1
HH, P1
H, P2
L, P2
LL, P1
AFD
AFD
L, P2
FAULT
FAULT
FAULT
C2-3610-BX-001
H, P2
L, P2
LL, P1
2"x1"
12"x10"
C2-3610-PP-048
4"x3"
2"
3610
00201
LV
+
12"x10"
C2-3610-TK-005
3610
00212
FE
+
2"
4"x3"
2"
3610
00202
FE
+
C2-3610-PP-047
3610-SL-1582-C1B-4"-N
C2-3610-PP-054
SIZE:
MATERIAL:
CAPACITY:
TRIM:
C2-3610-TK-005
CU CONCENTRATE THICKENER OVERFLOW TANK
3610-WR-1896-C1A-8"-N 3610-WR-1906-C1A-10"-N
3610-WR-1289-C1A-4"-N
3610-WR-1900-C1A-12"-N
3510-WR-1799-C1A-14"-N
ES
2"
2"x1"
AG
KM
LT
ISSUED FOR CLIENT REVIEW
22-Dec-11
B
RP
ISSUED FOR COMBINED REVIEW
30-Jun-11
A
12/22/2011
K. MUNDY
A. GUNSON
A. REGNAULT
L. TAMELIN
12/22/2011
1:58:19
PM
WBS: 3610
B
PIPING AND INSTRUMENTATION DIAGRAM
CU CONCENTRATE THICKENING
3600-25J-002
CONC. THICKENER O/F PUMPING
ES
3610-WG-1100-C1A-2"-N
SIZE:
MATERIAL:
MOTOR:
C2-3610-PP-047
CU CONCENTRATE THICKENER OVERFLOW PUMP NO.1
3610-WG-1101-C1A-1"-N
3610-WR-1902-C1A-10"-N
3610-WR-1901-C1A-10"-N
3610-WR-1899-C1A-12"-N
ES
SIZE:
MATERIAL:
MOTOR:
C2-3610-PP-048
CU CONCENTRATE THICKENER OVERFLOW PUMP NO.2
SIZE:
MATERIAL:
MOTOR:
C2-3610-PP-054
CU CONCENTRATE THICKENER AREA SUMP PUMP
D
4
F
B
A
3
2
1 5 6 8
E
7
C
REV.
APPROVED
CHK.
DES.
REV. DATE REVISION DESCRIPTION
CLIENT
LEAD ENGINEER
SCALE DRAWING NUMBER
CHECK DESIGN CHECK DRAWING
DESIGNED BY DRAWN BY
APPROVAL DATE
APPROVAL DATE
APPROVED
CHK.
DES.
REV. DATE REVISION DESCRIPTION REFERENCE DRAWING No.
1:100
0
1:200
5m
10m
0
5m
10m
15m
20m
1:500
10m
0
20m
30m
40m
50m
1:1000
0
100m
50m
1:20
0
0.5m
1m
1.5m
2m
0
1:25
0.5m
1m
1.5m
1:33
1/3
2.5m
2m
0
1m
2m
3m
0
1:50
1m
2m
3m
4m
5m
CAD FILE NAME: P:0CAD000SPEM**
MODEL UPDATED:
DWG. FILE UPDATED:
MANUAL CHANGES MADE: YES NO YES NO YES NO
PROJECT MANAGER
ENGINEERING MANAGER
AREA PROJECTENGINEER
REFERENCE DRAWINGS
SAFETY SHARE:
APPROVAL DATE
CONTRACT
NO.
SAFETY SHARE :
BA6CVA1.IGR
NOTICE: THIS DRAWING HAS NOT BEEN PUBLISHED AND IS THE SOLE
PROPERTY OF FLUOR AND IS LENT TO THE BORROWER FOR THEIR
CONFIDENTIAL USE ONLY, AND IN CONSIDERATION OF THE LOAN OF THIS
DRAWING, THE BORROWER PROMISES AND AGREES TO RETURN IT UPON
REQUEST AND AGREES THAT IT WILL NOT BE REPRODUCED, COPIED LENT
OR OTHERWISE DISPOSED OF DIRECTLY OR INDIRECTLY, NOR USED FOR
ANY OTHER PURPOSE OTHER THAN WHICH IT IS FURNISHED.
NONE
Apr 2
240K-C2-
GLAND SEAL WATER
3317 3900-25J-023
T8
FC
PROCESS WATER
3729 3900-25J-016
CONTENTS
PROCESS WATER
SAFTEY SCREEN FEED BOX,
C2-3620-BX-041
4137 3600-25J-005
3620-WR- -C1A-2"-N
T3
T3
3610
00382
HS
J/SP
3610
00381
HS
J/SP
3610
00382
II
3610
00382
XA
3610
00381
II
3610
00381
XA
3610
00322
ZS
3610
00322
XA
3610
00324
ZS
OP/CL
3610
00324
XA
3610
00309
ZS
3610
00319
ZS
OP/CL
3610
00306
ZS
OP/CL
3610
00307
ZS
3610
00319
XA
3610
00307
XA
3610
00306
XA
3610
00309
XA
3610
00317
ZS
3610
00312
ZS
OP/CL
3610
00308
ZS
3610
00316
ZS
3610
00318
ZS
3610
00316
XA
3610
00318
XA
3610
00308
XA
3610
00317
XA
3610
00312
XA
3610
00384
XA
M
3610
00313
PI
3610
00383
HS
M
3610
00301
FIT
M
MIN
3610
00315
PI
3610
00304
FI
3610
00384
II
3610
00301
DIC
3610
00383
XA
3610
00305
PI
3610
00314
FIT
3610
00304
FIT
3610
00302
LE
3610
00301
HY
3610
00301
DE
/
3610
00301
PT
3610
00302
LIT
3610
00301
DIT
3610
00302
LI H, P2
3610
00315
PIT
3610
00301
FY
3610
00301
DX
3610
00301
PIC
3610
00384
HS
3610
00301
WQI
3610
00305
PIT
3610
00314
FI
3610
00383
II
3610
00310
ZI
3610
00311
OI
HH, P2
H, P1
3610
00301
FIC
3610
00327
XA
3610
00327
ZS
3610
00326
ZS
3610
00326
XA
TO
FLOOR
TO
FLOOR
SUMP
CU FILTRATE
CU CONC. FILTER NO.2
C2-3620-FL-002
3351 3600-25J-012
CU FILTRATE
AIR RELEASE TANK FILTER
NO.2, C2-3620-TK-045
3352 3600-25J-012
CU CONC. THICKENER O/F
COMBINED. THICKENER O/F
PUMPS, C2-3610-PP-047/048
2842 3600-25J-002
GLAND SEAL WATER
2964 3900-25J-023
CU FILTRATE
CU CONC. FILTER NO.1
C2-3620-FL-001
3347 3600-25J-007
CU FILTRATE
AIR RELEASE TANK FILTER
NO.1, C2-3620-TK-044
3348 3600-25J-007
CONC. CLARIFIER O/F
CONC. CLARIFIER O/F PUMPS,
C2-3610-PP-008/009
3318
3600-25J-004
CU FILTRATE
AIR RELEASE TANK FILTER
NO.3, C2-3620-TK-053
3355 3600-25J-013
CU FILTRATE
CU CONC. FILTER NO.3
C2-3620-FL-003
3354 3600-25J-013
CONC. CLARIFIER O/F
CONC. CLARIFIER O/F TANK,
C2-3610-TK-095
2591 3600-25J-004
CU MO THICKENER FEED
CU MO CONC. THICKENER
BYPASS C2-3510-BX-003
2592 3500-25J-001
CONC. FLOCCULANT
CONCENTRATE FLOCCULANT
METERING PUMPS
2596 3900-25J-007
CONC. CLARIFIER U/F
CLARIFIER UNDERFLOW
PUMP NO.3, C2-3610-PP-016
4091
3600-25J-004
CONC. CLARIFIER U/F
CLARIFIER UNDERFLOW
PUMP NO.4, C2-3610-PP-017
3605
3600-25J-004
FAULT
FAULT
OP/CL
OP/CL
OP/CL
FAULT
FAULT
OP/CL
OP/CL
OP/CL
OP/CL
L, P2
AFD
SELECT
SLOPE
MIN
L, P2
MIN.
R1A
MIN
LIFT POSITION
MIN
AFD
MASS FLOW
J/SP
C1A
C1A
TO FLOOR
NOTES:
1. *" ANSI BOLTING X 6" I.D. AT BOTH PUMP FLANGES.
MIN
TORQUE
VENDOR SUPPLY
NOTE 1
NOTE 1
TO FLOOR
L, P2
LL,P1
MIN
R1A
MIN
J/SP
L, P2
LL,P1
SLOPE
NOTE 1
C2-3610-PP-016/017
OP/CL
OP/CL
V
3610
00327
XV
+
FI
3610
00309
XV
+
3610-WR-1903-C1A-4"-N
1-1/2"x1"
1-1/2"x1"
3610-WG-1036-C1A-2"-N
3610-WG-1036-C1A-1"-N
3610-SL-1605-R1A-6"-N
1"x1/2"
3620-SL-1591-R1A-10"-N
3610-SL-1599-R1A-14"-N
3610
00306
XV
+
3610
00319
XV
+
FI
3610
00322
XV
+
C2-3610-BX-006
3610-WG-1075-C1A-1"-N
V
3610
00326
XV
+
FI
AG
KM
LT
ISSUED FOR CLIENT REVIEW
22-Dec-11
B
RP
ISSUED FOR COMBINED REVIEW
30-Jun-11
A
12/22/2011
K. MUNDY
A.GUNSON
A. REGNAULT
L.TAMELIN
12/22/2011
2:00:00
PM
WBS: 3610
B
PIPING AND INSTRUMENTATION DIAGRAM
CU CONCENTRATE THICKENING
3600-25J-003
CONCENTRATE CLARIFIER
3610-WR-1904-C1A-4"-N
ES
3610
00318
XV
+
3610-SL-1598-R1A-12"-N
3610
00301
FE
+
FI
FI
14"x8"
FI
SIZE:
MATERIAL:
MOTOR:
C2-3610-PP-006
CLARIFIER UNDERFLOW PUMP NO. 1
SIZE: 35 m D
MATERIAL:
MOTOR:
C2-3610-TM-006
CONCENTRATE CLARIFIER MECHANISM
2"x1"
ES
3610-WR-1294-C1A-4"-N
C2-3610-PP-007
C2-3610-TK-006
C2-3610-PP-006
4"x1-1/2"
1-1/2"x1"
10"x14"
3610-WR-1296-C1A-4"-N
3610
00312
XV
+
3610
00314
FE
+
3610-WR-1905-C1A-16"-N
1-1/2"x1"
3610
00304
FE
+
SIZE:
MATERIAL:
MOTOR:
C2-3610-PP-007
CLARIFIER UNDERFLOW PUMP NO. 2
3610
00317
XV
+
3610
00308
XV
+
SIZE:35 m D
C2-3610-TK-006
CONCENTRATE CLARIFIER TANK
3610-SL-1602-R1A-8"-N
FI
ES
3610
00316
XV
+
FI
3620-SL-1592-R1A-10"-N
SIZE:
MATERIAL:
CAPACITY:
TRIM:C1B
C2-3610-BX-006
CONCENTRATE CLARIFIER FEED BOX
14"x8"
1"x1/2"
V
FI
ES
3620-SL-1593-R1A-10"-N
10"x14"
3610-SL-1601-R1A-8"-N
FI
ES
C2-3610-TM-006
3610
00307
XV
+
FI
FI
3610-SL-1600-R1A-14"-N
3910-RE-1018-C1A-2"-N
FI
3610
00324
XV
+
C2-3610-LA-009
3610-SL-1603-R1A-8"-N
3610-WR-1897-C1A-4"-N
SIZE:
C2-3610-LA-009
CONCENTRATE CLARIFIER FEED LAUNDER
D
4
F
B
A
3
2
1 5 6 8
E
7
C
REV.
APPROVED
CHK.
DES.
REV. DATE REVISION DESCRIPTION
CLIENT
LEAD ENGINEER
SCALE DRAWING NUMBER
CHECK DESIGN CHECK DRAWING
DESIGNED BY DRAWN BY
APPROVAL DATE
APPROVAL DATE
APPROVED
CHK.
DES.
REV. DATE REVISION DESCRIPTION REFERENCE DRAWING No.
1:100
0
1:200
5m
10m
0
5m
10m
15m
20m
1:500
10m
0
20m
30m
40m
50m
1:1000
0
100m
50m
1:20
0
0.5m
1m
1.5m
2m
0
1:25
0.5m
1m
1.5m
1:33
1/3
2.5m
2m
0
1m
2m
3m
0
1:50
1m
2m
3m
4m
5m
CAD FILE NAME: P:0CAD000SPEM**
MODEL UPDATED:
DWG. FILE UPDATED:
MANUAL CHANGES MADE: YES NO YES NO YES NO
PROJECT MANAGER
ENGINEERING MANAGER
AREA PROJECTENGINEER
REFERENCE DRAWINGS
SAFETY SHARE:
APPROVAL DATE
CONTRACT
NO.
SAFETY SHARE :
BA6CVA1.IGR
NOTICE: THIS DRAWING HAS NOT BEEN PUBLISHED AND IS THE SOLE
PROPERTY OF FLUOR AND IS LENT TO THE BORROWER FOR THEIR
CONFIDENTIAL USE ONLY, AND IN CONSIDERATION OF THE LOAN OF THIS
DRAWING, THE BORROWER PROMISES AND AGREES TO RETURN IT UPON
REQUEST AND AGREES THAT IT WILL NOT BE REPRODUCED, COPIED LENT
OR OTHERWISE DISPOSED OF DIRECTLY OR INDIRECTLY, NOR USED FOR
ANY OTHER PURPOSE OTHER THAN WHICH IT IS FURNISHED.
NONE
Apr 2011
240K-C2-
MISMATCH
MISMATCH
MISMATCH
MISMATCH
MISMATCH
MISMATCH
MISMATCH
MISMATCH
MISMATCH
MISMATCH MISMATCH
MISMATCH
MISMATCH
3610-SL-1814-R1A-3"-N
3610-SL-1815-R1A-3"-N
MUFFLER DISCHARGE
CU CONC. FILTER NO.3
MUFFLER C2-3620-ZM-076
3356 3600-25J-013
MUFFLER DISCHARGE
CU CONC. FILTER NO.2
MUFFLER C2-3620-ZM-075
3353 3600-25J-012
MUFFLER DISCHARGE
CU CONC. FILTER NO.1
MUFFLER C2-3620-ZM-074
3349 3600-25J-007
3610-WR-1906-C1A-10"-N
3510-SL-1590-R1A-30"-N
3610-SL-1623-R1A-8"-N
3620-SL-1636-R1A-8"-N
3620-SL-1648-R1A-8"-N
3620-SL-1818-R1A-2"-N
3620-SL-1596-C1B-10"-N
3620-SL-1595-C1B-10"-N
3620-SL-1594-C1B-10"-N
CONC. CLARIFIER U/F
CONC. CLARIFIER U/F PUMPS
NO.3 & NO.4,
3733 3600-25J-004
PROCESS WATER
2598 3900-25J-016
3610-RE-1023-C1A-2"-N
PROCESS WATER
2922 3900-25J-016
CONC. CLARIFIER U/F
SAFETY SCREEN
C2-3620-BX-041
4138 3600-25J-005
T3
T3
3610
00405
PIT
3610
00481
XA
3610
00401 A
LI
3610
00481
II
M
3610
00401
LIC
3610
00401
LT
3610
00401
LE
3610
00414
FI
3610
00415
PI
3610
00414
FIT
3610
00482
HS
J/SP
3610
00415
PIT
3610
00406
PIC H, P2
3610
00482
XA
3610
00482
II
3610
00406
PIT
M
3610
00404
FI
3610
00405
PI
3610
00404
FIT
3610
00481
HS
J/SP
TO
FLOOR
SUMP
TO
FLOOR
SUMP
CONC. CLARIFIER O/F
CONCENTRATE CLARIFIER,
C2-3610-TK-006
3318 3600-25J-003
PROCESS WATER
2560 3900-25J-016
CONC. CLARIFIER O/F
MO INTERMEDIATE
THICKENER, C2-3510-TK-602
2547 3500-25J-014
CONC. CLARIFIER O/F
CU-MO THICKENER,
C2-3510-TK-002
2548 3500-25J-001
CONC. CLARIFIER O/F
CU CONC. THICKENER,
C2-3610-TK-001
2549 3600-25J-001
CONC. CLARIFIER O/F
TAILING COLLECTION
LAUNDER NO. 1,
2550 3700-25J-001
CONC. CLARIFIER O/F
CU FILTER FEED MANIFOLD
FLUSH TANK, C2-3610-TK-043
2147 3600-25J-014
SLOPE
AFD
L, P2
L, P2
LL, P1
HH, P1
H, P2
L, P2
LL, P1
L, P2
L, P2
LL, P1
AFD
FAULT
FAULT
C2-3610-TK-095
2"
C2-3610-PP-009
2"
4"x3"
2"x1"
C2-3610-PP-008
2"
3610
00401
LV
+
3610
00404
FE
+
16"x10"
3610
00414
FE
+
4"x3"
2"
6"x1"
3610
00406
PV
+
16"x10"
AG
KM
LT
ISSUED FOR CLIENT REVIEW
22-Dec-11
B
RP
ISSUED FOR COMBINED REVIEW
30-Jun-11
A
12/22/2011
K. MUNDY
A.GUNSON
A. REGNAULT
L.TAMELIN
12/22/2011
2:03:23
PM
WBS: 3610
B
PIPING AND INSTRUMENTATION DIAGRAM
CU CONCENTRATE THICKENING
3600-25J-004
CONC. CLARIFIER O/F & U/F PUMPS
3610-WR-1912-C1A-20"-N
3950-WG-1011-C1A-6"-N
SIZE:
MATERIAL:
CAPACITY:
TRIM:
C2-3610-TK-095
CLARIFIER OVERFLOW TANK
3610-WR-1914-C1A-8"-N
3610-WR-1913-C1A-8"-N
SIZE:
MATERIAL:
MOTOR:
C2-3610-PP-009
CLARIIFIER OVERFLOW TRANSFER PUMP NO. 2
3610-WR-1909-C1A-16"-N
SIZE:
MATERIAL:
MOTOR:
C2-3610-PP-008
CLARIFIER OVERFLOW TRANSFER PUMP NO. 1
3610-WR-1908-C1A-16"-N
3610-WR-1910-C1A-12"-N
3610-WG-1062-C1A-1"-N
3610-WR-1893-C1A-4"-N
ES
ES
3610-WR-1295-C1A-4"-N
ES
3610-WR-1905-C1A-16"-N
3610-WR-1915-C1A-4"-N
3610-WR-1911-C1A-12"-N
3610-WR-1897-C1A-4"-N
D
4
F
B
A
3
2
1 5 6 8
E
7
C
REV.
APPROVED
CHK.
DES.
REV. DATE REVISION DESCRIPTION
CLIENT
LEAD ENGINEER
SCALE DRAWING NUMBER
CHECK DESIGN CHECK DRAWING
DESIGNED BY DRAWN BY
APPROVAL DATE
APPROVAL DATE
APPROVED
CHK.
DES.
REV. DATE REVISION DESCRIPTION REFERENCE DRAWING No.
1:100
0
1:200
5m
10m
0
5m
10m
15m
20m
1:500
10m
0
20m
30m
40m
50m
1:1000
0
100m
50m
1:20
0
0.5m
1m
1.5m
2m
0
1:25
0.5m
1m
1.5m
1:33
1/3
2.5m
2m
0
1m
2m
3m
0
1:50
1m
2m
3m
4m
5m
CAD FILE NAME: P:0CAD000SPEM**
MODEL UPDATED:
DWG. FILE UPDATED:
MANUAL CHANGES MADE: YES NO YES NO YES NO
PROJECT MANAGER
ENGINEERING MANAGER
AREA PROJECTENGINEER
REFERENCE DRAWINGS
SAFETY SHARE:
APPROVAL DATE
CONTRACT
NO.
SAFETY SHARE :
BA6CVA1.IGR
NOTICE: THIS DRAWING HAS NOT BEEN PUBLISHED AND IS THE SOLE
PROPERTY OF FLUOR AND IS LENT TO THE BORROWER FOR THEIR
CONFIDENTIAL USE ONLY, AND IN CONSIDERATION OF THE LOAN OF THIS
DRAWING, THE BORROWER PROMISES AND AGREES TO RETURN IT UPON
REQUEST AND AGREES THAT IT WILL NOT BE REPRODUCED, COPIED LENT
OR OTHERWISE DISPOSED OF DIRECTLY OR INDIRECTLY, NOR USED FOR
ANY OTHER PURPOSE OTHER THAN WHICH IT IS FURNISHED.
NONE
Apr 2011
240K-C2-
GLAND SEAL WATER
3026 3900-25J-023
FI
CONC. CLARIFIER O/F
CONCENTRATE CLARIFIER,
C2-3610-TK-006
2591 3600-25J-003
3610
00419
XV
+
FI
3610
00419
XA
MISMATCH
3610
00419
ZS
OP/CL
3610
00409
XV
+
FI
3610
00409
XA
MISMATCH
3610
00409
ZS
OP/CL
T1
T1
3610
00491
XA
3610
00491
II
M
3610
00434
FI
3610
00434
FIT
3610
00492
HS
J/SP
3610
00492
XA
3610
00492
II
3610
00491
HS
J/SP
L, P2
LL, P1
FAULT
FAULT
C2-3610-PP-017
C2-3610-PP-016
3"x2-1/2"
3610
00434
FE
+
3"x2-1/2"
ES
3610
00439
XV
+
FI
3610
00439
XA
MISMATCH
3610
00439
ZS
OP/CL
3610
00429
XV
+
FI
3610
00429
XA
MISMATCH
3610
00429
ZS
OP/CL
3610
00435
PI
3610
00435
PIT
M
3610
00424
FI
3610
00424
FIT
L, P2
LL, P1
3610
00424
FE
+
3610
00425
PI
3610
00425
PIT
L,P2
L,P2
3610-SL-1814-R1A-3"-N
3610-SL-1815-R1A-3"-N
3610
00428
XA
MISMATCH
3610
00428
ZS
OP/CL
8"x6"
TO FLOOR
3610
00438
XA
MISMATCH
3610
00438
ZS
OP/CL
8"x6"
TO FLOOR
3610-WG-1119-C1A-1"-N
3610-WG-1118-C1A-1"-N
3610-SL-1817-C1B-2"-N
3610-SL-1816-C1B-2"-N
3610
00428
XV
+
3610
00438
XV
+
ES
SIZE:
MATERIAL:
MOTOR:
C2-3610-PP-016
CLARIFIER UNDERFLOW PUMP NO. 3
SIZE:
MATERIAL:
MOTOR:
C2-3610-PP-017
CLARIFIER UNDERFLOW PUMP NO. 4
M
3610
00421
FIT
3610
00421
FIC
3610
00421
FE
+
ES
3610
00421
DE
3610
00421
DX
3610
00421
DIT
3610
00421
DIC
CONC. CLARIFIER U/F
CONCENTRATE CLARIFIER
FEED BOX, C2-3610-BX-006
3733 3600-25J-003
CONC. CLARIFIER U/F
CU-MO CONC. THICKENER
FEED BOX, C2-3510-BX-003
3734 3500-25J-001
C2-3710-LA-001
CONC. CLARIFIER U/F
CONCENTRATE CLARIFIER,
C2-3610-TK-006
4091 3600-25J-003
CONC. CLARIFIER U/F
CONCENTRATE CLARIFIER,
C2-3610-TK-006
3605 3600-25J-003
3610-SL-1818-C1B-2"-N
CONC CLARIFIER O/F
MO 1ST CLEANER FLOTATION
4140 3500-25J-007
CONC CLARIFIER O/F
MO CL SCAVENGER
FLOTATION
4141 3500-25J-012
CONC CLARIFIER O/F
MO 2ND CLEANER FLOTATION
4142 3500-25J-015
3610-WR- -C1A-4"-N
3610-WR- -C1A-6"-N
3610-WR- -C1A-4"-N
3610-SL-1604-C1B-2"-N
3610-SL- -C1B-2"-N
3610
00427
XV
+
V1
3610
00427
XA MISMATCH
3610
00427
ZS
OP/CL
3610
00407
XV
+
V1
3610
00407
XA MISMATCH
3610
00407
ZS
OP/CL
3610
00417
XV
+
V1
3610
00417
XA MISMATCH
3610
00417
ZS
OP/CL
CONC. CLARIFIER O/F
CU CONC THICKENER FEED
BOX, C2-3610-BX-001
4134 3600-25J-001
T1
T1
T1
3620
00503
ZS
3620
00537
ZS
3620
00503
XA
3620
00537
XA
3620
00507
ZS
3620
00527
ZS
3620
00547
ZS
3620
00517
ZS
3620
00507
XA
3620
00527
XA
3620
00547
XA
3620
00517
XA
3620
00523
ZS
3620
00523
XA
3620
00522
LE
3620
00591
II
3620
00502
LI
3620
00581
II
3620
00502
LE
3620
00567
XA
3620
00567
ZS
3620
00522
LIT
OP/CL
3620
00591
XA FAULT
3620
00571
II
3620
00571
HS
3620
00522
LI
3620
00581
HS
J/SP
3620
00571
XA
3620
00591
HS
J/SP
3620
00581
XA FAULT
3620
00502
LIT
TO
FLOOR
SUMP
CU CONC. FILTER FEED
CU CONC. FILTER NO.2 FEED
PUMP, C2-3620-PP-050
3607 3600-25J-008
CU CONC. FILTER FEED
CU CONC. FILTER NO.3 FEED
PUMP, C2-3620-PP-066
3608 3600-25J-008
CU CONC. FILTER FEED
CU CONC. FILTER NO.1 FEED
PUMP, C2-3620-PP-049
3606 3600-25J-008
CU CONC. FILTER FEED
CU CONC. FILTER FEED PUMP
(STANDBY), C2-3620-PP-067
3609 3600-25J-008
CU CONC. THICKENER U/F
CU CONCENTRATE
THICKENER U/F PUMPS
2221 3600-25J-001
OP/CL
OP/CL
OP/CL
OP/CL
OP/CL
J/SP
OP/CL
MIN
MIN
MIN
MIN
FAULT
C2-3610-PP-045/046
O/F
L, P2
LL, P1
H, P2
MIN.
SCRAP
DRUM L, P2
LL, P1
H, P2
MIN.
3620
00547
XV
+
C2-3620-SC-031
3620
00527
XV
+
3620
00503
XV
+
C2-3620-TK-027
30"
C2-3620-BX-041
C2-3620-AG-028
10"
3620
00507
XV
+
FI
FI
FI
FI
FI
FI FI
3620-SL-1606-R1B-6"-N
3620-SL-1610-R1B-16"-N
FI
SIZE:
C2-3620-SC-031
CU CONCENTRATE SAFETY SCREEN
3620
00523
XV
+
C2-3620-AG-027
30"
C2-3620-ST-034
C2-3620-DI-027
3620
00537
XV
+
C2-3620-TK-028
3620
00517
XV
+
AG
KM
LT
ISSUED FOR CLIENT REVIEW
22-Dec-11
B
RP
ISSUED FOR COMBINED REVIEW
30-Jun-11
A
12/22/2011
K. MUNDY
A.GUNSON
A. REGNAULT
L.TAMELIN
12/22/2011
2:04:56
PM
WBS: 3620
B
PIPING AND INSTRUMENTATION DIAGRAM
CONCENTRATE TANKS AND FILTERING
3600-25J-005
CONCENTRATE STORAGE TANKS
SIZE:
MATERIAL:
CAPACITY:
TRIM:
C2-3620-TK-028
CU CONCENTRATE FILTER FEED TANK NO.2
SIZE:
MATERIAL:
MOTOR:
C2-3620-AG-027
CU CONCENTRATE FILTER FEED TANK NO.1 AGITATOR
ES
SIZE:
C2-3620-DI-027
CU CONCENTRATE FILTER FEED TANK DISTRIBUTOR
SIZE:
C2-3620-ST-034
CU CONCENTRATE SAFETY SCREEN NO.1 OVERSIZE DISCHARGE CHUTE
3610-SL-1586-R1A-8"-N
ES
V
SIZE:
MATERIAL:
CAPACITY:
TRIM:
C2-3620-TK-027
CU CONCENTRATE FILTER FEED TANK NO.1
V
V
V
SIZE:
MATERIAL:
MOTOR:
C2-3620-AG-028
CU CONCENTRATE FILTER FEED TANK NO.2 AGITATOR
SIZE:
C2-3620-BX-041
SAFETY SCREEN FEED BOX
D
4
F
B
A
3
2
1 5 6 8
E
7
C
REV.
APPROVED
CHK.
DES.
REV. DATE REVISION DESCRIPTION
CLIENT
LEAD ENGINEER
SCALE DRAWING NUMBER
CHECK DESIGN CHECK DRAWING
DESIGNED BY DRAWN BY
APPROVAL DATE
APPROVAL DATE
APPROVED
CHK.
DES.
REV. DATE REVISION DESCRIPTION REFERENCE DRAWING No.
1:100
0
1:200
5m
10m
0
5m
10m
15m
20m
1:500
10m
0
20m
30m
40m
50m
1:1000
0
100m
50m
1:20
0
0.5m
1m
1.5m
2m
0
1:25
0.5m
1m
1.5m
1:33
1/3
2.5m
2m
0
1m
2m
3m
0
1:50
1m
2m
3m
4m
5m
CAD FILE NAME: P:0CAD000SPEM**
MODEL UPDATED:
DWG. FILE UPDATED:
MANUAL CHANGES MADE: YES NO YES NO YES NO
PROJECT MANAGER
ENGINEERING MANAGER
AREA PROJECTENGINEER
REFERENCE DRAWINGS
SAFETY SHARE:
APPROVAL DATE
CONTRACT
NO.
SAFETY SHARE :
BA6CVA1.IGR
NOTICE: THIS DRAWING HAS NOT BEEN PUBLISHED AND IS THE SOLE
PROPERTY OF FLUOR AND IS LENT TO THE BORROWER FOR THEIR
CONFIDENTIAL USE ONLY, AND IN CONSIDERATION OF THE LOAN OF THIS
DRAWING, THE BORROWER PROMISES AND AGREES TO RETURN IT UPON
REQUEST AND AGREES THAT IT WILL NOT BE REPRODUCED, COPIED LENT
OR OTHERWISE DISPOSED OF DIRECTLY OR INDIRECTLY, NOR USED FOR
ANY OTHER PURPOSE OTHER THAN WHICH IT IS FURNISHED.
NONE
Apr 2011
240K-C2-
MISMATCH
MISMATCH
MISMATCH
MISMATCH
MISMATCH
MISMATCH
MISMATCH
MISMATCH
3620-SL-1607-R1B-6"-N
3620-SL-1612-R1B-12"-N
3620-SL-1613-R1B-12"-N
3620-SL-1614-R1B-12"-N
3620-SL-1615-R1B-12"-N
3620
00567
XV
+
CU CONC FILTER FEED
CONC FILTER FEED PUMPS,
C2-3620-PP-044/050/051/066
4147 3600-25J-001
3620-SL-1601-R1A-8"-N
3620-SL-1812-R1B-16"-N
3620-SL-1401-R1A-10"-N
3620-WR- -R1A-2"-N
CONC, CLARIFIER U/F
CLARIFIER UNDERFLOW
PUMPS,
4138 3600-25J-003
PROCESS WATER
4137 3600-25J-002
CU-MO-THICKENER U/F
CU-MO THICKENER U/F
PUMPS, CU-3510-PP-055/056
3313 3500-25J-001
C2-3620-PP-044/050/051/066
T1
T1
T8
T1
T1
T1
T1
3620
00691
XA
3620
00629
ZS
3620
00629
XA MISMATCH
3610
00617
XA
MISMATCH
3610
00617
ZS
OP/CL
3620
00627
ZS
3620
00627
XA
3620
00637
ZS
3620
00637
XA
3620
00607
ZS
OP/CL
3620
00607
XA
3620
00609
ZS
OP/CL
3620
00609
XA
3620
00684
II
3620
00684
HS
J/SP
3620
00684
XA
3620
00691
HS
J/SP
3620
00691
II
3620
00647
XA
3620
00647
ZS
3620
00685
XA
3620
00685
HS
J/SP
3620
00685
II
3620
00618
ZS
3620
00618
XA MISMATCH
3620
00628
ZS
3620
00628
XA MISMATCH
3620
00638
XA MISMATCH
3620
00638
ZS
3620
00601
LE
3620
00601 A
LI
3620
00681
HS
J/SP
3620
00681
XA
3610
00681
II
3620
00682
HS
J/SP
3620
00682
II
3620
00682
XA
3620
00683
HS
J/SP
3620
00683
XA
3620
00683
II
3620
00606
ZS
OP/CL
3620
00608
ZS
OP/CL
3620
00608
XA
3620
00606
XA
3620
00639
ZS
OP/CL
3620
00639
XA MISMATCH
3620
00602
LIT
3620
00602
LI
3620
00692
HS
J/SP
3620
00692
II
3620
00619
ZS
OP/CL
3620
00602
LE
3620
00692
XA
3620
00619
XA MISMATCH
3620
00601
LIC H, P2
L, P2
3620
00601
LT
MISMATCH
CLOTH WASH WATER
CU CONC. FILTER NO.1,
C2-3620-FL-001
2140 3600-25J-007
CLOTH WASH WATER
CU CONC. FILTER NO.2,
C2-3620-FL-002
2141 3600-25J-012
CLOTH WASH WATER
CU CONC. FILTER NO.3,
C2-3620-FL-003
2142 3600-25J-013
FILTER AREA SUMP
CU CONC. THICKENER FEED
BOX, C2-3610-BX-001
2164 3600-25J-001
FRESH WATER
2143
FAULT
FAULT
FAULT
H, P2
L, P2
LL, P1
FAULT
FAULT
FAULT
MISMATCH
OP/CL
OP/CL
MISMATCH MISMATCH
MISMATCH
MISMATCH
MISMATCH
FAULT
OP/CL
OP/CL
OP/CL
OP/CL
OP/CL
3620-WF-1523-C1A-3"-N
FI
FI
FI
C2-3620-PW-061
C2-3620-PP-035
SIZE:
MATERIAL:
MOTOR:
C2-3620-PP-035
CU CONCENTRATE FILTER AREA SPILLAGE PUMP
C2-3620-PW-097
SIZE:
MATERIAL:
MOTOR:
C2-3620-PW-060
CU CONCENTRATE GLAND SEAL WATER PUMP NO.1
SIZE:
MATERIAL:
CAPACITY:
TRIM:
C2-3620-TK-060
CU CONCENTRATE GLAND SEAL WATER TANK
3620
00606
XV
+
SIZE:
MATERIAL:
MOTOR:
C2-3620-PW-061
CU CONCENTRATE GLAND SEAL WATER PUMP NO.2
SIZE:
MATERIAL:
MOTOR:
C2-3620-PW-097
CU CONCENTRATE FILTER NO.3 CLOTH WASH PUMP
C2-3620-PW-095
SIZE:
MATERIAL:
MOTOR:
C2-3620-PW-095
CU CONCENTRATE FILTER NO.1 CLOTH WASH PUMP
C2-3620-PW-060
SIZE:
MATERIAL:
MOTOR:
C2-3620-PW-096
CU CONCENTRATE FILTER NO.2 CLOTH WASH PUMP
3620
00607
XV
+
3620
00609
XV
+
3620
00608
XV
+
3620-SL-1634-C1B-4"-N
C2-3620-PW-096
C2-3620-TK-060
3620
00601
LV
+
FI
3620-WF-1442-C1A-3"-N
3620-WG-1102-C1A-2"-N
3620
00629
XV
+
3620-WF-1199-C1A-2"-N
3620-WF-1528-C1A-2"-N
FI
3620
00647
XV
+
3620-WF-1441-C1A-3"-N
3620-WG-1103-C1A-2"-N
3620-WF-1443-C1A-3"-N
C2-3620-PW-098
SIZE:
MATERIAL:
MOTOR:
C2-3620-PW-098
CU CONCENTRATE FILTER CLOTH WASH PUMP (STANDBY)
FI
3620
00619
XV
+
3610
00617
XV
+
3620
00627
XV
+
3620
00637
XV
+
2"x3" 4"x3"
3620
00639
XV
+
FI
FI
3620
00618
XV
+
FI
3620
00628
XV
+
3620
00638
XV
+
FI
TO FLOOR SUMP
ES
FI
FI
FI
FI
D
4
F
B
A
3
2
1 5 6 8
E
7
C
REV.
APPROVED
CHK.
DES.
REV. DATE REVISION DESCRIPTION
CLIENT
LEAD ENGINEER
SCALE DRAWING NUMBER
CHECK DESIGN CHECK DRAWING
DESIGNED BY DRAWN BY
APPROVAL DATE
APPROVAL DATE
APPROVED
CHK.
DES.
REV. DATE REVISION DESCRIPTION REFERENCE DRAWING No.
1:100
0
1:200
5m
10m
0
5m
10m
15m
20m
1:500
10m
0
20m
30m
40m
50m
1:1000
0
100m
50m
1:20
0
0.5m
1m
1.5m
2m
0
1:25
0.5m
1m
1.5m
1:33
1/3
2.5m
2m
0
1m
2m
3m
0
1:50
1m
2m
3m
4m
5m
CAD FILE NAME: P:0CAD000SPEM**
MODEL UPDATED:
DWG. FILE UPDATED:
MANUAL CHANGES MADE: YES NO YES NO YES NO
PROJECT MANAGER
ENGINEERING MANAGER
AREA PROJECTENGINEER
REFERENCE DRAWINGS
SAFETY SHARE:
APPROVAL DATE
CONTRACT
NO.
SAFETY SHARE :
BA6CVA1.IGR
NOTICE: THIS DRAWING HAS NOT BEEN PUBLISHED AND IS THE SOLE
PROPERTY OF FLUOR AND IS LENT TO THE BORROWER FOR THEIR
CONFIDENTIAL USE ONLY, AND IN CONSIDERATION OF THE LOAN OF THIS
DRAWING, THE BORROWER PROMISES AND AGREES TO RETURN IT UPON
REQUEST AND AGREES THAT IT WILL NOT BE REPRODUCED, COPIED LENT
OR OTHERWISE DISPOSED OF DIRECTLY OR INDIRECTLY, NOR USED FOR
ANY OTHER PURPOSE OTHER THAN WHICH IT IS FURNISHED.
NONE
Apr 2011
240K-C2-
3620-WG-1105-C1A-2"-N
GLAND SEAL WATER
CU CONC. FILTER FEED
PUMPS,
3735 3600-25J-008
3620-WF-1444-C1A-2"-N
3620-WF-1524-C1A-2"-N
3620-WF-1445-C1A-2"-N
3620-WF-1446-C1A-2"-N
3620-WF-1527-C1A-2"-N
3620-WF-1526-C1A-2"-N
3620-WF-1525-C1A-2"-N
AG
KM
LT
ISSUED FOR CLIENT REVIEW
22-Dec-11
B
RP
ISSUED FOR COMBINED REVIEW
30-Jun-11
A
12/22/2011
K. MUNDY
A. GUNSON
A. REGNAULT
L. TAMELIN
12/22/2011
2:06:11
PM
WBS: 3620
B
PIPING AND INSTRUMENTATION DIAGRAM
CONCENTRATE TANKS AND FILTERING
3600-25J-006
CU FILTER ANCILLARIES - SHEET 1 OF 3
FILTER DRAIN CONTENTS
CU CONCENTRATE
FILTER NO.3 FLOOR DRAIN
2572 3600-25J-013
FILTER DRAIN CONTENTS
CU CONCENTRATE
FILTER NO.1 FLOOR DRAIN
2297 3600-25J-007
FILTER DRAIN CONTENTS
CU CONCENTRATE
FILTER NO.2 FLOOR DRAIN
2566 3600-25J-012
3620-DR-1011-C1B-4"-N
3620-DR-1009-C1B-4"-N
3620-DR-1010-C1B-4"-N
3620-WG-1104-C1A-2"-N
CONTENTS
C2-3620-PP-049/050/066/067
3620
00705
XA
3620
00705
ZS
OP/CL
3620
00781
HS
J/SP
3620
00781
XA
3620
00781
II
3620
00782
HS
J/SP
3620
00782
XA
3620
00782
II
3620
00706 A
WE
3620
00706 B
WE
3620
00706 A
WI
3620
00706 B
WI
3620
00706 B
WT
3620
00706 A
WT
3620
00704
HSL
3620
00703
XL
3620
00701
PIT
3610
00702
WIT
3610
00702
WE
FILTER FEED CONTROL,
C2-3610-PP-099
2846 3600-25J-008
CU FILTRATE
CONC. CLARIFIER FEED
LAUNDER, C2-3610-LA-009
3347 3600-25J-003
CU FILTRATE
CONC. CLARIFIER FEED
LAUNDER, C2-3610-LA-009
3348 3600-25J-003
MUFFLER DISCHARGE
CONC. CLARIFIER FEED
LAUNDER, C2-3610-LA-009
3349 3600-25J-003
INSTRUMENT AIR
2294
3900-25J-022
CU CONC. FILTER FEED
CU CONC. FILTER NO.1 FEED
PUMP, C2-3620-PP-049
2169 3600-25J-008
PLANT AIR
CU CONC. FILTER NO.1
DRYING AIR RECEIVER,
2136 3600-25J-011
HIGH PRESSURE AIR
CU CONC. FILTER NO.1
PRESSING AIR RECEIVER,
2138 3600-25J-011
CU FILTER DISCHARGE
CONCENTRATE STORAGE
2296 3600-25J-017
CLOTH WASH WATER
CU CONC. FILTER NO.1
CLOTH WASH PUMP,
2140 3600-25J-006
OIL HEATER
DRUM
MIN. 1%
MIN. 6.5%
NOTE 1
FLOOR
DRAIN
C2-3620-VS-041
HYDRAULIC PUMP
MIN.
2 M
C2-3620-PW-095
SLOPE
FILTER
CONTROL
PANEL
FILTER
HYDRAULIC
POWER UNIT
NOTES:
1. DISCHARGE WARNING HORN & STROBE
LOCATED IN CONCENTRATE STORAGE AREA
REFERENCE
VENDOR DRAWINGS
SLOPE
SLOPE
OIL COOLER FAN
SLOPE
FAULT
FAULT
SLOPE
MIN. 1%
MIN. 1%
C2-3620-VS-051
MIN. 1%
MISMATCH
C2-3620-ST-621
V
8"x6"
1-1/2"
8"x6"
3620
00705
XV
+
V
V
V
6"x4"
2"x1/2"
1-1/2"
C2-3620-TK-044
C2-3620-CO-501
1-1/2" C2-3620-ST-623
10"x6"
C2-3620-FL-001
3620
00703
XA
+
C2-3620-ST-622
C2-3620-ZM-074
1-1/2"
C2-3620-ST-627
C2-3620-HY-501
AG
KM
LT
ISSUED FOR CLIENT REVIEW
22-Dec-11
B
RP
ISSUED FOR COMBINED REVIEW
30-Jun-11
A
12/22/2011
K. MUNDY
A. GUNSON
A. REGNAULT
L. TAMELIN
12/22/2011
2:07:21
PM
WBS: 3620
B
PIPING AND INSTRUMENTATION DIAGRAM
CONCENTRATE TANKS AND FILTERING
3600-25J-007
CU CONCENTRATE FILTER NO. 1
3620-SL-1626-C1B-6"-N
V
3620-AI-1024-G1A-2"-N
3620-SL-1623-R1A-8"-N
SIZE:
C2-3620-ST-627
FILTER NO.1 HYDRAULIC CONTAINMENT DUCT
3620-SL-1629-C1B-6"-N
V
SIZE:
C2-3620-ZM-074
CU CONCENTRATE FILTER NO.1 MUFFLER
3620-SL-1628-C1B-6"-N
SIZE:
MATERIAL:
CAPACITY:
TRIM:C1B
C2-3620-TK-044
AIR RELEASE TANK NO.1
3620-OLL-1043-S1A-1/2"-N
3620-SL-1594-C1B-10"-N
V
SIZE:
C2-3620-ST-622
CU CONCENTRATE FILTER NO.1 DISCHARGE CHUTE
3620-SL-1620-R1B-8"-N
3610-SL-1626-C1B-10"-N
3620-SL-1591-C1B-6"-N
3620-AP-1313-C1A-4"-N
V
3620-SL-1623-R1A-8"-N
3620-AP-1270-C1A-4"-N
V
3620-WF-1444-C1A-2"-N
SIZE:
C2-3620-HY-501
CU CONCENTRATE FILTER NO.1 HYDRAULIC UNIT
V
V
V
3620-AHP-1010-C1G-3"-N
SIZE:
C2-3620-ST-623
CU CONCENTRATE FILTER NO.1 DISCHARGE CHUTE
V
V
SIZE:
C2-3620-CO-501
CU CONCENTRATE FILTER NO.1 CONTROL PANEL
SIZE:
C2-3620-ST-621
CU CONCENTRATE FILTER NO.1 DISCHARGE CHUTE
SIZE:
MATERIAL:
MOTOR:
C2-3620-FL-001
CU CONCENTRATE FILTER NO.1
3620-SL-1624-R1A-6"-N
3620-DR-1009-C1B-4"-N
V
3620-SL-1627-C1B-6"-N
D
4
F
B
A
3
2
1 5 6 8
E
7
C
REV.
APPROVED
CHK.
DES.
REV. DATE REVISION DESCRIPTION
CLIENT
LEAD ENGINEER
SCALE DRAWING NUMBER
CHECK DESIGN CHECK DRAWING
DESIGNED BY DRAWN BY
APPROVAL DATE
APPROVAL DATE
APPROVED
CHK.
DES.
REV. DATE REVISION DESCRIPTION REFERENCE DRAWING No.
1:100
0
1:200
5m
10m
0
5m
10m
15m
20m
1:500
10m
0
20m
30m
40m
50m
1:1000
0
100m
50m
1:20
0
0.5m
1m
1.5m
2m
0
1:25
0.5m
1m
1.5m
1:33
1/3
2.5m
2m
0
1m
2m
3m
0
1:50
1m
2m
3m
4m
5m
CAD FILE NAME: P:0CAD000SPEM**
MODEL UPDATED:
DWG. FILE UPDATED:
MANUAL CHANGES MADE: YES NO YES NO YES NO
PROJECT MANAGER
ENGINEERING MANAGER
AREA PROJECTENGINEER
REFERENCE DRAWINGS
SAFETY SHARE:
APPROVAL DATE
CONTRACT
NO.
SAFETY SHARE :
BA6CVA1.IGR
NOTICE: THIS DRAWING HAS NOT BEEN PUBLISHED AND IS THE SOLE
PROPERTY OF FLUOR AND IS LENT TO THE BORROWER FOR THEIR
CONFIDENTIAL USE ONLY, AND IN CONSIDERATION OF THE LOAN OF THIS
DRAWING, THE BORROWER PROMISES AND AGREES TO RETURN IT UPON
REQUEST AND AGREES THAT IT WILL NOT BE REPRODUCED, COPIED LENT
OR OTHERWISE DISPOSED OF DIRECTLY OR INDIRECTLY, NOR USED FOR
ANY OTHER PURPOSE OTHER THAN WHICH IT IS FURNISHED.
NONE
Apr 2011
240K-C2-
3620-WR-2013-C1A-1-1/2"-N
3620-SL-1630-C1B-4"-N
3620-SL-1633-C1B-4"-N
3620-WR-1921-C1A-6"-N
FILTER DRAIN CONTENTS
CU CONC. FILTER AREA
SPILLAGE SUMP
2297 3600-25J-006
VENDOR
3620-OLL-1042-S1A-2"-N
MANIFOLD FLUSH WATER
CU CONC. FILTER NO.1
MANIFOLD FLUSH PUMP,
2149
3600-25J-014
VENDOR
T3
3620
00835
PIT
3620
00834
FIT
3620
00835
PI
L,P2
3620
00834
FI
M
3620
00884
SIC
3620
00884
II
3620
00884
HS
3620
00836
ZS
3620
00836
XA
TO FLOOR
J/SP
L,P2
LL,P1
AFD
AG
KM
LT
ISSUED FOR CLIENT REVIEW
22-Dec-11
B
NOT USED
A
12/22/2011
K. MUNDY
A. GUNSON
A. REGNAULT
L. TAMELIN
12/22/2011
2:51:11
PM
WBS: 3620
B
PIPING AND INSTRUMENTATION DIAGRAM
CONCENTRATE TANKS AND FILTERING
3600-25J-008
CU CONCENTRATE FILTER FEED PUMPS
ES
3620
00834
FE
+
FI
3"x2"
3"x1"
8"x6"
2"x1-1/4"
D
4
F
B
A
3
2
1 5 6 8
E
7
C
REV.
APPROVED
CHK.
DES.
REV. DATE REVISION DESCRIPTION
CLIENT
LEAD ENGINEER
SCALE DRAWING NUMBER
CHECK DESIGN CHECK DRAWING
DESIGNED BY DRAWN BY
APPROVAL DATE
APPROVAL DATE
APPROVED
CHK.
DES.
REV. DATE REVISION DESCRIPTION REFERENCE DRAWING No.
1:100
0
1:200
5m
10m
0
5m
10m
15m
20m
1:500
10m
0
20m
30m
40m
50m
1:1000
0
100m
50m
1:20
0
0.5m
1m
1.5m
2m
0
1:25
0.5m
1m
1.5m
1:33
1/3
2.5m
2m
0
1m
2m
3m
0
1:50
1m
2m
3m
4m
5m
CAD FILE NAME: P:0CAD000SPEM**
MODEL UPDATED:
DWG. FILE UPDATED:
MANUAL CHANGES MADE: YES NO YES NO YES NO
PROJECT MANAGER
ENGINEERING MANAGER
AREA PROJECTENGINEER
REFERENCE DRAWINGS
SAFETY SHARE:
APPROVAL DATE
CONTRACT
NO.
SAFETY SHARE :
BA6CVA1.IGR
NOTICE: THIS DRAWING HAS NOT BEEN PUBLISHED AND IS THE SOLE
PROPERTY OF FLUOR AND IS LENT TO THE BORROWER FOR THEIR
CONFIDENTIAL USE ONLY, AND IN CONSIDERATION OF THE LOAN OF THIS
DRAWING, THE BORROWER PROMISES AND AGREES TO RETURN IT UPON
REQUEST AND AGREES THAT IT WILL NOT BE REPRODUCED, COPIED LENT
OR OTHERWISE DISPOSED OF DIRECTLY OR INDIRECTLY, NOR USED FOR
ANY OTHER PURPOSE OTHER THAN WHICH IT IS FURNISHED.
NONE
Apr 2011
240K-C2-
3620
00839
ZS
3620
00839
XA
OP/CL
3620
00839
XV
+
3620
00836
XV
+
T3
3620
00825
PIT
3620
00824
FIT
3620
00825
PI
L,P2
3620
00824
FI
M
3620
00883
SIC
3620
00883
II
3620
00883
HS
3620
00826
ZS
3620
00826
XA
TO FLOOR
J/SP
L,P2
LL,P1
AFD
ES
3620
00824
FE
+
FI
3"x2"
3"x1"
8"x6"
2"x1-1/4"
3620
00829
ZS
3620
00829
XA
OP/CL
3620
00829
XV
+
3620
00826
XV
+
T3
3620
00815
PIT
3620
00814
FIT
3620
00815
PI
L,P2
3620
00814
FI
M
3620
00882
SIC
3620
00882
II
3620
00882
HS
3620
00816
ZS
3620
00816
XA
TO FLOOR
J/SP
L,P2
LL,P1
AFD
ES
3620
00814
FE
+
FI
3"x2"
3"x1"
8"x6"
2"x1-1/4"
3620
00819
ZS
3620
00819
XA
OP/CL
3620
00819
XV
+
3620
00816
XV
+
T3
3620
00805
PIT
3620
00804
FIT
3620
00805
PI
L,P2
3620
00804
FI
M
3620
00881
SIC
3620
00881
II
3620
00881
HS
3620
00806
ZS
3620
00806
XA
TO FLOOR
J/SP
L,P2
LL,P1
AFD
ES
3620
00804
FE
+
FI
3"x2"
3"x1"
8"x6"
2"x1-1/4"
3620
00809
ZS
3620
00809
XA
OP/CL
3620
00809
XV
+
3620
00806
XV
+
3620
00838
ZS
3620
00838
XA
FI
3620
00838
XV
+
3620
00828
ZS
3620
00828
XA
FI
3620
00828
XV
+
3620
00808
ZS
3620
00808
XA
FI
3620
00808
XV
+
3620
00818
ZS
3620
00818
XA
FI
3620
00818
XV
+
MISMATCH
MISMATCH
MISMATCH
MISMATCH
MISMATCH
MISMATCH
MISMATCH MISMATCH
3620
00801
DIT
3620
00801
DI
OP/CL
3620
00801
FIT
M
3620
00801
DX
3620
00801
DE
3620
00801
FE
+
3620
00803
XV
+
3620
00801
FY
FL
MASS
FLOW
3620
00803
XA
3620
00801
FI
3620
00803
ZS
3620
00801
WQI
3620
00821
DIT
3620
00821
DI
OP/CL
3620
00821
FIT
M
3620
00821
DX
3620
00821
DE
3620
00821
FE
+
3620
00813
XV
+
3620
00821
FY
FL
MASS
FLOW
3620
00813
XA
3620
00821
FI
3620
00813
ZS
3620
00821
WQI
3620
00841
DIT
3620
00841
DI
OP/CL
3620
00841
FIT
M
3620
00841
DX
3620
00841
DE
3620
00841
FE
+
3620
00823
XV
+
3620
00841
FY
FL
MASS
FLOW
3620
00823
XA
3620
00841
FI
3620
00823
ZS
3620
00841
WQI
CU CONC FILTER FEED
CU CONC. STORAGE TANKS,
C2-3610-TK-027/028
3606 3600-25J-005
CU CONC FILTER FEED
CU CONC. STORAGE TANKS,
C2-3610-TK-027/028
3607 3600-25J-005
CU CONC FILTER FEED
CU CONC. STORAGE TANKS
C2-3610-TK-027/028
3608 3600-25J-005
CU CONC FILTER FEED
CU CONC. STORAGE TANKS,
C2-3610-TK-027/028
3609 3600-25J-005
CU CONC. FILTER FEED
CU CONC. FILTER NO.1,
C2-3620-FL-001
2169 3600-25J-007
CU CONC. FILTER FEED
CU CONC. FILTER NO.3,
C2-3610-FL-003
2168 3600-25J-013
CU CONC. FILTER FEED
CU CONC. FILTER NO.2,
C2-3610-FL-002
2170 3600-25J-012
FILTER FEED CONTROL
FROM FILTER NO.3 PLC
2845
3600-25J-013
FILTER FEED CONTROL
FROM FILTER NO.2 PLC
2847
3600-25J-012
FILTER FEED CONTROL
FROM FILTER NO.1 PLC
2846
3600-25J-007
FILTER FEED CONTROL -
FILTERS NO.2 & NO.3 PLCS
3622
3600-25J-013
C2-3620-PP-049
C2-3620-PP-050
C2-3620-PP-066
C2-3620-PP-067
SIZE:
MATERIAL:
MOTOR:
C2-3620-PP-049
CU CONCENTRATE FILTER NO.1 FEED PUMP
SIZE:
MATERIAL:
MOTOR:
C2-3620-PP-050
CU CONCENTRATE FILTER NO.2 FEED PUMP
SIZE:
MATERIAL:
MOTOR:
C2-3620-PP-066
CU CONCENTRATE FILTER NO.3 FEED PUMP (AFD)
SIZE:
MATERIAL:
MOTOR:
C2-3620-PP-067
CU CONCENTRATE FILTER FEED PUMP (STANDBY)
MISMATCH
MISMATCH
MISMATCH
MISMATCH
MISMATCH
MISMATCH
MISMATCH
3620-SL-1620-R1B-8"-N
3620-SL-00810-R1B-16"-N
3620-SL-1621-R1B-8"-N
3620-SL-1622-R1B-8"-N
3620-SL-1612-R1B-12"-N
3620-SL-1613-R1B-12"-N
3620-SL-1614-R1B-12"-N
3620-SL-1615-R1B-12"-N
3620-WG-1064-C1A-1"-N
3620-WG-1063-C1A-1"-N
3620-WG-1116-C1A-1"-N
3620-WG-1117-C1A-1"-N
3620-SL-1619-R1B-8"-N
3620-SL-1618-R1B-8"-N
3620-SL-1617-R1B-8"-N
3620-SL-1616-R1B-8"-N
3620-SL-1616-R1B-16"-N
GLAND SEAL WATER
CU CONC. GLAND SEAL
WATER PUMP,
3735 3600-25J-006
3620-WG-1104-C1A-2"-N
CU CONC. FILTER FEED
CU CONC. THICKENER FEED
BOX, C2-3620-BX-001
3736 3600-25J-001
3620-WG-1108-C1A-2"-N
3620
XV
+
V1
3620
00810
XA MISMATCH
3620
00810
ZS
OP/CL
BYPASS
C2-3620-PW-060/061
T1
T1
T1
T1
T1
T1
3620
01145
PI
3620
01125
PI
3620
01155
PI
3620
01105
PI
3620
01135
PI
3620
01115
PI
3620
01181
HS
3620
01191
XA
3620
01182
HS
3620
01191
HS
3620
01181
II
3620
01181
XA
3620
01183
HS
3620
01183
XA
3620
01183
II
3620
01191
II
3620
01182
II
3620
01182
XA
3620
01192
XA
3620
01192
HS
3620
01192
II
3620
01193
XA
3620
01193
II
3620
01193
HS
AUTO
DRAIN
HIGH PRESSURE AIR
CU CONC. FILTER NO.3,
C2-3620-FL-003
2158 3600-25J-013
HIGH PRESSURE AIR
CU CONC. FILTER NO.2,
C2-3620-FL-002
2155 3600-25J-012
PLANT AIR
CU CONC.E FILTER NO.3,
C2-3620-FL-003
2160 3600-25J-013
HIGH PRESSURE AIR
CU CONC. FILTER NO.1,
C2-3620-FL-001
2138 3600-25J-007
PLANT AIR
CU CONC. FILTER NO.1,
C2-3620-FL-001
2136 3600-25J-007
PLANT AIR
CU CONC. FILTER NO.2,
C2-3620-FL-002
2154 3600-25J-012
J/SP
FAULT
FAULT
FAULT
J/SP
J/SP
J/SP
FAULT
J/SP
FAULT
J/SP
FAULT
DIRT POCKET
AUTO
DRAIN
862.00 KPA (G) 862.00 KPA (G)
AUTO
DRAIN
DIRT POCKET
AUTO
DRAIN
DIRT POCKET
862.00 KPA (G)
AUTO
DRAIN
DIRT POCKET
862.00 KPA (G)
AUTO
DRAIN
862.00 KPA (G)
DIRT POCKET
DIRT POCKET
862.00 KPA (G)
VENDOR
VENDOR
VENDOR
VENDOR VENDOR
VENDOR
3620
01141
PCV
+
3620-AP-1271-C1A-4"-N
C2-3620-CO-041
C2-3620-CO-052
SIZE:
MATERIAL:
MOTOR:
C2-3620-CO-052
CU CONCENTRATE FILTER NO.2 PRESSING AIR COMPRESSOR
3620
01132
PSV
+
SIZE:
MATERIAL:
MOTOR:
C2-3620-CO-041
CU CONCENTRATE FILTER NO.1 DRYING AIR COMPRESSOR
3620-AP-1273-C1A-4"-N
SIZE:
MATERIAL:
MOTOR:
C2-3620-CO-051
CU CONCENTRATE FILTER NO.1 PRESSING AIR COMPRESSOR
SIZE:
MATERIAL:
MOTOR:
C2-3620-CO-043
CU CONCENTRATE FILTER NO.3 DRYING AIR COMPRESSOR
V V
V
V
V
V
V
V
V
V
C2-3620-CO-042
3620
01131
PCV
+
3620
01151
PCV
+
SIZE:
MATERIAL:
MOTOR:
C2-3620-CO-053
CU CONCENTRATE FILTER NO.3 PRESSING AIR COMPRESSOR
C2-3620-CO-043
3620
01152
PSV
+
C2-3620-CO-053
3620
01142
PSV
+
3620-AHP-1005-C1G-3"-N
SIZE:
MATERIAL:
MOTOR:
C2-3620-CO-042
CU CONCENTRATE FILTER NO.2 DRYING AIR COMPRESSOR
TO ATMOSPHERE TO ATMOSPHERE
TO ATMOSPHERE TO ATMOSPHERE
TO ATMOSPHERE
TO ATMOSPHERE
3620-AP-1268-C1A-4"-N
C2-3620-CO-051
3620-AP-1315-C1A-4"-N
3620-AP-1313-C1A-4"-N
3620-AP-1314-C1A-4"-N
AG
KM
LT
ISSUED FOR CLIENT REVIEW
22-Dec-11
B
RP
ISSUED FOR COMBINED REVIEW
30-Jun-11
A
12/22/2011
K. MUNDY
A. GUNSON
A. REGNAULT
L. TAMELIN
12/22/2011
2:09:19
PM
WBS: 3620
B
PIPING AND INSTRUMENTATION DIAGRAM
CONCENTRATE TANKS AND FILTERING
3600-25J-011
CU FILTER ANCILLARIES - SHEET 2 OF 3
V
V
3620
01104
PSV
+
PSET=
C2-3620-VS-041
V
V
DRAIN
V V
V
DRAIN
V
C2-3620-VS-051
V
PSET=
V
3620
01134
PSV
+
SIZE:
MATERIAL:
CAPACITY:
TRIM:C1A
C2-3620-VS-041
CU CONCENTRATE FILTER NO.1 DRYING AIR RECEIVER
SIZE:
MATERIAL:
CAPACITY:
TRIM:C1A
C2-3620-VS-051
CU CONCENTRATE FILTER NO.1 PRESSING AIR RECEIVER
V
PSET=
3620
01114
PSV
+
V
V
DRAIN
V
V
V
V
V
PSET=
3620
01144
PSV
+
V
DRAIN
V
DRAIN
PSET=
V 3620
01124
PSV
+
V
V
V
V
DRAIN
V
V
PSET=
V
V
V 3620
01154
PSV
+
3620-AHP-1003-C1G-3"-N
C2-3620-VS-042
C2-3620-VS-052
C2-3620-VS-043
C2-3620-VS-053
SIZE:
MATERIAL:
CAPACITY:
TRIM:C1A
C2-3620-VS-042
CU CONCENTRATE FILTER NO.2 DRYING AIR RECEIVER
SIZE:
MATERIAL:
CAPACITY:
TRIM:C1A
C2-3620-VS-052
CU CONCENTRATE FILTER NO.2 PRESSING AIR RECEIVER
SIZE:
MATERIAL:
CAPACITY:
TRIM:C1A
C2-3620-VS-043
CU CONCENTRATE FILTER NO.3 DRYING AIR RECEIVER
SIZE:
MATERIAL:
CAPACITY:
TRIM:C1A
C2-3620-VS-053
CU CONCENTRATE FILTER NO.3 PRESSING AIR RECEIVER
V
V
V
V
V
V
3620-AP-1312-C1A-4"-N
3620-AHP-1004-C1A-3"-N
3620-AHP-1002-C1G-3"-N
3620-AHP-1006-C1G-3"-N
3620-AHP-1010-C1G-3"-N
3620-AHP-1011-C1G-3"-N
3620-AHP-1012-C1G-3"-N
3620-AHP-1009-C1G-3"-N
D
4
F
B
A
3
2
1 5 6 8
E
7
C
REV.
APPROVED
CHK.
DES.
REV. DATE REVISION DESCRIPTION
CLIENT
LEAD ENGINEER
SCALE DRAWING NUMBER
CHECK DESIGN CHECK DRAWING
DESIGNED BY DRAWN BY
APPROVAL DATE
APPROVAL DATE
APPROVED
CHK.
DES.
REV. DATE REVISION DESCRIPTION REFERENCE DRAWING No.
1:100
0
1:200
5m
10m
0
5m
10m
15m
20m
1:500
10m
0
20m
30m
40m
50m
1:1000
0
100m
50m
1:20
0
0.5m
1m
1.5m
2m
0
1:25
0.5m
1m
1.5m
1:33
1/3
2.5m
2m
0
1m
2m
3m
0
1:50
1m
2m
3m
4m
5m
CAD FILE NAME: P:0CAD000SPEM**
MODEL UPDATED:
DWG. FILE UPDATED:
MANUAL CHANGES MADE: YES NO YES NO YES NO
PROJECT MANAGER
ENGINEERING MANAGER
AREA PROJECTENGINEER
REFERENCE DRAWINGS
SAFETY SHARE:
APPROVAL DATE
CONTRACT
NO.
SAFETY SHARE :
BA6CVA1.IGR
NOTICE: THIS DRAWING HAS NOT BEEN PUBLISHED AND IS THE SOLE
PROPERTY OF FLUOR AND IS LENT TO THE BORROWER FOR THEIR
CONFIDENTIAL USE ONLY, AND IN CONSIDERATION OF THE LOAN OF THIS
DRAWING, THE BORROWER PROMISES AND AGREES TO RETURN IT UPON
REQUEST AND AGREES THAT IT WILL NOT BE REPRODUCED, COPIED LENT
OR OTHERWISE DISPOSED OF DIRECTLY OR INDIRECTLY, NOR USED FOR
ANY OTHER PURPOSE OTHER THAN WHICH IT IS FURNISHED.
NONE
Apr 2011
240K-C2-
3620-AP-1269-C1A-4"-N
3620-AP-1272-C1A-4"-N
3620-AP-1274-C1A-4"-N
3620-AHP-1001-C1G-3"-N
3620-AHP-1007-C1G-3"-N
3620-AHP-1008-C1G-3"-N
VENDOR
3620
01206 B
WI
3620
01206 A
WI
3620
01206 B
WT
3620
01206 A
WT
3620
01206 B
WE
3620
01206 A
WE
3620
01201
PIT
3620
01203
XL
3620
01202
WIT
3620
01202
WE
3620
01204
HSL
3620
01205
XA
3620
01205
ZS
3620
01281
II
3620
01281
HS
J/SP
3620
01281
XA
3620
01282
HS
J/SP
3620
01282
XA
3620
01282
II
CU FILTRATE
CONC. CLARIFIER FEED
LAUNDER, C2-3610-LA-009
3351 3600-25J-003
CU FILTRATE
CONC. CLARIFIER FEED
LAUNDER, C2-3610-LA-009
3352 3600-25J-003
MUFFLER DISCHARGE
CONC. CLARIFIER FEED
LAUNDER, C2-3610-LA-009
3353 3600-25J-003
FILTER FEED CONTROL,
C2-3620-PP-050
2847 3600-25J-008
FILTER DRAIN CONTENTS
CU CONC. FILTER AREA
SPILLAGE SUMP
2566 3600-25J-006
INSTRUMENT AIR
2567
3900-25J-022
PLANT AIR
CU CONC. FILTER NO.2
DRYING AIR RECEIVER,
2154 3600-25J-011
CLOTH WASH WATER
CU CONC. FILTER NO.2
CLOTH WASH PUMP,
2141 3600-25J-006
C2-3620-PW-096
MANIFOLD FLUSH WATER
CU CONC. FILTER NO.2
MANIFOLD FLUSH PUMP,
2150
3600-25J-014
CU CONC. FILTER FEED
CU CONC. FILTER NO.2 FEED
PUMP, C2-3620-PP-050
2170 3600-25J-008
HIGH PRESSURE AIR
CU CONC. FILTER NO.2
PRESSING AIR RECEIVER,
2155 3600-25J-011
CU FILTER DISCHARGE
CONCENTRATE STORAGE
2301 3600-25J-017
C2-3620-VS-042
C2-3620-VS-052
C2-3620-PW-086
MIN.
2M
FILTER
CONTROL
PANEL
SLOPE MIN. 1%
SLOPE
NOTES:
1. DISCHARGE WARNING HORN & STROBE
LOCATED IN CONCENTRATE STORAGE AREA
SLOPE
DRUM
SLOPE
NOTE 1
MIN. 1%
SLOPE
MIN. 6.5%
MIN. 1%
MIN. 1%
HYDRAULIC PUMP
OIL COOLER FAN
FLOOR
DRAIN
REFERENCE
VENDOR DRAWINGS
OIL HEATER
VENDOR
FILTER
HYDRAULIC
POWER UNIT
MISMATCH
OP/CL
FAULT
FAULT
3620-DR-1010-C1B-4"-N
3620-OLL-1044-S1A-2"-N
V
V
V
V
3610-SL-1642-C1B-6"-N
SIZE:
C2-3620-ST-624
CU CONCENTRATE FILTER NO. 2 DISCHARGE CHUTE
V
3610-SL-1641-C1B-6"-N
3620-SL-1636-R1A-8"-N
3610-SL-1639-C1B-6"-N
3620-SL-1636-R1A-8"-N
V
V
3620-SL-1592-C1B-6"-N
V
SIZE:
C2-3620-ST-626
CU CONCENTRATE FILTER NO. 2 DISCHARGE CHUTE
V
3610-SL-1640-C1B-6"-N
SIZE:
C2-3620-ZM-075
CU CONCENTRATE FILTER NO.2 MUFFLER
3620-OLL-1045-S1A-1/2"-N
SIZE:
C2-3620-CO-502
CU CONCENTRATE FILTER NO. 2 CONTROL PANEL
3620-AP-1275-C1A-4"-N
SIZE:
C2-3620-ST-625
CU CONCENTRATE FILTER NO. 2 DISCHARGE CHUTE
3610-SL-1639-C1B-10"-N
3620-AI-1026-G1A-2"-N
SIZE:
C2-3620-ST-628
FILTER NO. 2 HYDRAULIC CONTAINMENT DUCT
SIZE:
C2-3620-HY-502
CU CONCENTRATE FILTER NO. 2 HYDRAULIC UNIT
3620-WF-1445-C1A-2"-N
3620-SL-1637-R1A-6"-N
3620-SL-1621-R1B-8"-N
SIZE:
MATERIAL:
MOTOR:
C2-3620-FL-002
CU CONCENTRATE FILTER NO. 2
3620-SL-1595-C1B-10"-N
3620-AHP-1011-C1G-3"-N
3620-AP-1314-C1A-4"-N
V
SIZE:
MATERIAL:
CAPACITY:
TRIM:
C2-3620-TK-045
AIR RELEASE TANK NO.2
V
V
FC
V
V
C2-3620-ST-626
1-1/2"
C2-3620-ST-625
C2-3620-CO-502
C2-3620-HY-502
C2-3620-ST-624
C2-3620-ST-628
1-1/2"
8"x6"
C2-3620-FL-002
C2-3620-ZM-075
6"x4"
10"x6"
C2-3620-TK-045
3620
01205
XV
+
1-1/2" 1-1/2"
3620
01203
XA
+
8"x6"
V
2"x1/2"
AG
KM
LT
ISSUED FOR CLIENT REVIEW
22-Dec-11
B
RP
ISSUED FOR COMBINED REVIEW
30-Jun-11
A
12/22/2011
K. MUNDY
A. GUNSON
A. REGNAULT
L. TAMELIN
12/22/2011
2:49:40
PM
WBS: 3620
B
PIPING AND INSTRUMENTATION DIAGRAM
CONCENTRATE TANKS AND FILTERING
3600-25J-012
CU CONCENTRATE FILTER NO. 2
3620-WR-2014-C1A-1-1/2"-N
3610-SL-1643-C1B-4"-N
3620-SL-1646-C1B-4"-N
3620-WR-1922-C1A-6"-N
D
4
F
B
A
3
2
1 5 6 8
E
7
C
REV.
APPROVED
CHK.
DES.
REV. DATE REVISION DESCRIPTION
CLIENT
LEAD ENGINEER
SCALE DRAWING NUMBER
CHECK DESIGN CHECK DRAWING
DESIGNED BY DRAWN BY
APPROVAL DATE
APPROVAL DATE
APPROVED
CHK.
DES.
REV. DATE REVISION DESCRIPTION REFERENCE DRAWING No.
1:100
0
1:200
5m
10m
0
5m
10m
15m
20m
1:500
10m
0
20m
30m
40m
50m
1:1000
0
100m
50m
1:20
0
0.5m
1m
1.5m
2m
0
1:25
0.5m
1m
1.5m
1:33
1/3
2.5m
2m
0
1m
2m
3m
0
1:50
1m
2m
3m
4m
5m
CAD FILE NAME: P:0CAD000SPEM**
MODEL UPDATED:
DWG. FILE UPDATED:
MANUAL CHANGES MADE: YES NO YES NO YES NO
PROJECT MANAGER
ENGINEERING MANAGER
AREA PROJECTENGINEER
REFERENCE DRAWINGS
SAFETY SHARE:
APPROVAL DATE
CONTRACT
NO.
SAFETY SHARE :
BA6CVA1.IGR
NOTICE: THIS DRAWING HAS NOT BEEN PUBLISHED AND IS THE SOLE
PROPERTY OF FLUOR AND IS LENT TO THE BORROWER FOR THEIR
CONFIDENTIAL USE ONLY, AND IN CONSIDERATION OF THE LOAN OF THIS
DRAWING, THE BORROWER PROMISES AND AGREES TO RETURN IT UPON
REQUEST AND AGREES THAT IT WILL NOT BE REPRODUCED, COPIED LENT
OR OTHERWISE DISPOSED OF DIRECTLY OR INDIRECTLY, NOR USED FOR
ANY OTHER PURPOSE OTHER THAN WHICH IT IS FURNISHED.
NONE
Apr 2011
240K-C2-
VENDOR
D
4
F
B
A
3
2
1 5 6 8
E
7
C
REV.
APPROVED
CHK.
DES.
REV. DATE REVISION DESCRIPTION
CLIENT
LEAD ENGINEER
SCALE DRAWING NUMBER
CHECK DESIGN CHECK DRAWING
DESIGNED BY DRAWN BY
APPROVAL DATE
APPROVAL DATE
APPROVED
CHK.
DES.
REV. DATE REVISION DESCRIPTION REFERENCE DRAWING No.
1:100
0
1:200
5m
10m
0
5m
10m
15m
20m
1:500
10m
0
20m
30m
40m
50m
1:1000
0
100m
50m
1:20
0
0.5m
1m
1.5m
2m
0
1:25
0.5m
1m
1.5m
1:33
1/3
2.5m
2m
0
1m
2m
3m
0
1:50
1m
2m
3m
4m
5m
CAD FILE NAME: P:0CAD000SPEM**
MODEL UPDATED:
DWG. FILE UPDATED:
MANUAL CHANGES MADE: YES NO YES NO YES NO
PROJECT MANAGER
ENGINEERING MANAGER
AREA PROJECTENGINEER
REFERENCE DRAWINGS
SAFETY SHARE:
APPROVAL DATE
CONTRACT
NO.
SAFETY SHARE :
BA6CVA1.IGR
NOTICE: THIS DRAWING HAS NOT BEEN PUBLISHED AND IS THE SOLE
PROPERTY OF FLUOR AND IS LENT TO THE BORROWER FOR THEIR
CONFIDENTIAL USE ONLY, AND IN CONSIDERATION OF THE LOAN OF THIS
DRAWING, THE BORROWER PROMISES AND AGREES TO RETURN IT UPON
REQUEST AND AGREES THAT IT WILL NOT BE REPRODUCED, COPIED LENT
OR OTHERWISE DISPOSED OF DIRECTLY OR INDIRECTLY, NOR USED FOR
ANY OTHER PURPOSE OTHER THAN WHICH IT IS FURNISHED.
NONE
Apr 2011
240K-C2-
OIL HEATER
6"x4"
C2-3620-ST-637
HYDRAULIC PUMP
1-1/2"
V
3620
01304
HSL
OIL COOLER FAN
SLOPE
REFERENCE
VENDOR DRAWINGS
MIN.
2M
SLOPE
2"x1/2"
SLOPE
VENDOR
SLOPE
C2-3620-TK-053
C2-3620-ZM-076
MIN. 1%
3620
01302
WE
3620
01305
XV
+
SLOPE
3620
01302
WIT
8"x6"
C2-3620-FL-003
FLOOR
DRAIN
MIN. 1%
C2-3620-CO-503
8"x6"
3620
01301
PIT
MIN. 1%
C2-3620-ST-633
C2-3620-HY-503
MIN. 6.5%
C2-3620-ST-631
3620
01303
XA
+
NOTES:
1. DISCHARGE WARNING HORN & STROBE
LOCATED IN CONCENTRATE STORAGE AREA
DRUM
MIN. 1%
3620
01303
XL
C2-3620-ST-632
FILTER
CONTROL
PANEL
1-1/2"
VENDOR
NOTE 1
1-1/2"
10"x6"
FILTER HYDRAULIC
POWER UNIT
1-1/2"
CLOTH WASH WATER
CU CONC. FILTER NO.3
CLOTH WASH PUMP,
2142 3600-25J-006
MANIFOLD FLUSH WATER
CU CONC. FILTER NO.3
MANIFOLD FLUSH PUMP,
2151
3600-25J-014
CU CONC. FILTER FEED
CU CONC. FILTER NO.3 FEED
PUMP, C2-3620-PP-066
2168 3600-25J-008
CU FILTER DISCHARGE
CONCENTRATE STORAGE
2302 3600-25J-017
PLANT AIR
CU CONC. FILTER NO.3
DRYING AIR RECEIVER,
2160 3600-25J-011
HIGH PRESSURE AIR
CU CONC. FILTER NO.3
PRESSING AIR RECEIVER,
2158 3600-25J-011
INSTRUMENT AIR
2573
3900-25J-022
C2-3620-VS-043
C2-3620-PW-087
C2-3620-VS-053
C2-3620-PW-097
3620-AP-1276-C1A-4"-N
3620-OLL-1047-S1A-1/2"-N
3620-DR-1011-C1B-4"-N
3620-SL-1653-C1B-6"-N
V
V
V
SIZE:
C2-3620-ST-632
CU CONCENTRATE FILTER NO. 3 DISCHARGE CHUTE
V
V
SIZE:
C2-3620-ZM-076
CU CONCENTRATE FILTER NO. 3 MUFFLER
V
SIZE:
MATERIAL:
MOTOR:
C2-3620-FL-003
CU CONCENTRATE FILTER NO. 3
SIZE:
C2-3620-ST-637
FILTER NO.3 HYDRAULIC CONTAINMENT DUCT
V
3620-SL-1652-C1B-6"-N
SIZE:
MATERIAL:
CAPACITY:
TRIM:C1B
C2-3620-TK-053
AIR RELEASE TANK NO.3
V
3620-WF-1446-C1A-2"-N
SIZE:
C2-3620-HY-503
CU CONCENTRATE FILTER NO. 3 HYDRAULIC UNIT
3620-AI-1025-G1A-2"-N
3620-SL-1593-C1B-6"-N
V
SIZE:
C2-3620-CO-503
CU CONCENTRATE FILTER NO. 3 CONTROL PANEL
3620-SL-1651-C1B-10"-N
3620-SL-1596-C1B-10"-N
SIZE:
C2-3620-ST-631
CU CONCENTRATE FILTER NO. 3 DISCHARGE CHUTE
3620-SL-1654-C1B-6"-N
SIZE:
C2-3620-ST-633
CU CONCENTRATE FILTER NO. 3 DISCHARGE CHUTE
V
3620-SL-1651-C1B-6"-N
V
3620-AHP-1012-C1G-3"-N
3620-SL-1622-R1B-8"-N
3620-AP-1315-C1A-4"-N
3620-SL-1649-R1A-6"-N
FILTER FEED CONTROL,
C2-3610-PP-066
2845 3600-25J-008
AG
KM
LT
ISSUED FOR CLIENT REVIEW
22-Dec-11
B
RP
ISSUED FOR COMBINED REVIEW
30-Jun-11
A
12/22/2011
K. MUNDY
A. GUNSON
A. REGNAULT
L. TAMELIN
12/22/2011
2:49:03
PM
WBS: 3620
B
PIPING AND INSTRUMENTATION DIAGRAM
CONCENTRATE TANKS AND FILTERING
3600-25J-013
CU CONCENTRATE FILTER NO. 3
3620
01305
ZS
3620
01305
XA
OP/CL
3620
01381
II
3620
01381
XA
3620
01381
HS
FAULT
J/SP
3620
01382
II
3620
01382
XA
3620
01382
HS
FAULT
J/SP
CU FILTRATE
CONC. CLARIFIER FEED
LAUNDER, C2-3610-LA-009
3354 3600-25J-003
CU FILTRATE
CONC. CLARIFIER FEED
LAUNDER, C2-3610-LA-009
3355 3600-25J-003
MUFFLER DISCHARGE
CONC. CLARIFIER FEED
LAUNDER, C2-3610-LA-009
3356 3600-25J-003
V
MISMATCH
FC
V
V
3620
01306 A
WE
3620
01306 B
WE
3620
01306 A
WT
3620
01306 B
WT
3620
01306 A
WI
3620
01306 B
WI
3620-WR-2015-C1A-1-1/2"-N
3620-SL-1655-C1B-4"-N
3620-SL-1658-C1B-4"-N
3620-WR-1923-C1A-6"-N
FILTER DRAIN CONTENTS
CU CONC. FILTER AREA
SPILLAGE SUMP
2572 3600-25J-006
3620-SL-1648-R1A-8"-N
3620-OLL-1046-S1A-2"-N
3620-SL-1648-R1A-8"-N
VENDOR
T1
T1
T1
T1
3620
01484
II
3620
01484
XA
OP/CL
3620
01409
ZS
3620
01409
XA MISMATCH
3620
01401 A
LI
3620
01401
LE
3620
01408
ZS
OP/CL
3620
01408
XA MISMATCH
3620
01418
XA MISMATCH
3620
01418
ZS
OP/CL
3620
01483
HS
J/SP
3620
01483
II
3620
01483
XA
3620
01482
XA
3620
01482
HS
J/SP
3620
01482
II
3620
01481
HS
J/SP
3620
01427
ZS
3620
01427
XA
3620
01481
II
3620
01481
XA
3620
01417
ZS
MISMATCH
3620
01417
XA
3620
01407
ZS
3620
01407
XA
3620
01401
LIC H, P2
L, P2
3620
01429
XA MISMATCH
3620
01429
ZS
OP/CL
3620
01428
XV
OP/CL
3620
01428
ZV MISMATCH
3620
01484
HS
J/SP
MISMATCH
3620
01437
XA
3620
01437
ZS
3620
01419
ZS
3620
01419
XA MISMATCH
OP/CL
3620
01401
LT
MISMATCH
MANIFOLD FLUSH WATER
CU CONC. FILTER NO. 2,
C2-3620-FL-002
2150 3600-25J-012
CONC. CLARIFIER O/F
CU CONC. CLARIFIER O/F
TRANSFER PUMPS,
2147 3600-25J-004
MANIFOLD FLUSH WATER
CU CONC. FILTER NO. 1,
C2-3620-FL-001
2149 3600-25J-007
MANIFOLD FLUSH WATER
CU CONC. FILTER NO. 3,
C2-3620-FL-003
2151 3600-25J-013
FAULT
OP/CL
FAULT
FAULT
FAULT
OP/CL
OP/CL
OP/CL
C2-3610-PP-008/009
MISMATCH
3620-WR-1920-C1A-6"-N
SIZE:
MATERIAL:
CAPACITY:
TRIM:
C2-3620-TK-043
CU CONCENTRATE MANIFOLD FLUSH TANK
4"x2"
3620-WR-1919-C1A-6"-N
C2-3620-TK-043
3620
01401
LV
+
SIZE:
MATERIAL:
MOTOR:
C2-3620-PW-086
CU CONCENTRATE FILTER NO.2 MANIFOLD FLUSH PUMP
3620-WR-1921-C1A-6"-N
3620
01427
XV
+
3620-WR-1922-C1A-6"-N
3620
01407
XV
+
3610-WR-1893-C1A-12"-N
12"x2"
3620-WR-1918-C1A-6"-N
6"x4"
FI
3620
01419
XV
+
SIZE:
MATERIAL:
MOTOR:
C2-3620-PW-087
CU CONCENTRATE FILTER NO.3 MANIFOLD FLUSH PUMP
C2-3620-PW-086
3620
01417
XV
+
6"x4"
6"x4"
C2-3620-PW-085
SIZE:
MATERIAL:
MOTOR:
C2-3620-PW-085
CU CONCENTRATE FILTER NO.1 MANIFOLD FLUSH PUMP
3620
01437
XV
+
3620-WR-2008-C1A-6"-N
3620-WR-1923-C1A-6"-N
3620-WR-2009-C1A-6"-N
3620-WR-2010-C1A-6"-N
3620-WR-2011-C1A-6"-N
3620-WR-2012-C1A-6"-N
C2-3620-PW-087
6"x4"
C2-3620-PW-088
SIZE:
MATERIAL:
MOTOR:
C2-3620-PW-088
CU CONCENTRATE FILTER MANIFOLD FLUSH PUMP (STANDBY)
FI
3620
01409
XV
+
3620
01429
XV
+
FI
3620
01408
ZV
+
3620
01418
ZV
+
3620
01428
ZV
+
3620-WR-1916-C1A-4"-N
TO FLOOR SUMP
D
4
F
B
A
3
2
1 5 6 8
E
7
C
REV.
APPROVED
CHK.
DES.
REV. DATE REVISION DESCRIPTION
CLIENT
LEAD ENGINEER
SCALE DRAWING NUMBER
CHECK DESIGN CHECK DRAWING
DESIGNED BY DRAWN BY
APPROVAL DATE
APPROVAL DATE
APPROVED
CHK.
DES.
REV. DATE REVISION DESCRIPTION REFERENCE DRAWING No.
1:100
0
1:200
5m
10m
0
5m
10m
15m
20m
1:500
10m
0
20m
30m
40m
50m
1:1000
0
100m
50m
1:20
0
0.5m
1m
1.5m
2m
0
1:25
0.5m
1m
1.5m
1:33
1/3
2.5m
2m
0
1m
2m
3m
0
1:50
1m
2m
3m
4m
5m
CAD FILE NAME: P:0CAD000SPEM**
MODEL UPDATED:
DWG. FILE UPDATED:
MANUAL CHANGES MADE: YES NO YES NO YES NO
PROJECT MANAGER
ENGINEERING MANAGER
AREA PROJECTENGINEER
REFERENCE DRAWINGS
SAFETY SHARE:
APPROVAL DATE
CONTRACT
NO.
SAFETY SHARE :
BA6CVA1.IGR
NOTICE: THIS DRAWING HAS NOT BEEN PUBLISHED AND IS THE SOLE
PROPERTY OF FLUOR AND IS LENT TO THE BORROWER FOR THEIR
CONFIDENTIAL USE ONLY, AND IN CONSIDERATION OF THE LOAN OF THIS
DRAWING, THE BORROWER PROMISES AND AGREES TO RETURN IT UPON
REQUEST AND AGREES THAT IT WILL NOT BE REPRODUCED, COPIED LENT
OR OTHERWISE DISPOSED OF DIRECTLY OR INDIRECTLY, NOR USED FOR
ANY OTHER PURPOSE OTHER THAN WHICH IT IS FURNISHED.
NONE
Apr 2011
240K-C2-
AG
KM
LT
ISSUED FOR CLIENT REVIEW
22-Dec-11
B
RP
ISSUED FOR COMBINED REVIEW
30-Jun-11
A
12/22/2011
K. MUNDY
A. GUNSON
A. REGNAULT
L. TAMELIN
12/22/2011
2:12:20
PM
WBS: 3620
B
PIPING AND INSTRUMENTATION DIAGRAM
CONCENTRATE TANKS AND FILTERING
3600-25J-014
CU FILTER ANCILLARIES - SHEET 3 OF 3
RHS
A-B
3630
01702
HSS
3630
01705
ZSH
A-B
3630
01701
HSS
3630
01704
ZSH
3630
01705
ZAH
RHS
3630
01704
ZAH
3630
01702
HSA
3630
01701
HSA
3630
01715
ZS
3630
01714
XL
3630
01714
XL
PROCEED
3630
01714
XL
3630
01781
II
3630
01781
XA
3630
01703 A
SE
3630
01703 A
ST
3630
01781
HS
SLOW
3630
01716
LE
3630
01716
LI
3630
01716
LIT
3630
01786
XA
3630
01786
II
3630
01786
HS
J/SP
3630
01708
ZSL
3630
01708
ZSH
3630
01708
HS
UP/DN
3630
01708
ZI
3630
01706
LSH
3630
01706
LAH
P1
3630
01719
LE
3630
01719
LT
3630
01719 A
LI
3630
01720
LT
3630
01720 A
LI
3630
01720
LE
3630
01720
LI
3630
01719
LI
3630
01782
XA
3630
01713
SI
3630
01711
HS
J/SP
3630
01782
UA
H, P2
3630
01711
TI
3630
01709
LAL
3630
01712
PDI
FAULT
(J) JF/JR
SP
STOP
STOP
LIGHT
H, P2
HH, P1
L,P2
UP/DN
HYDRAULIC
DRIVE
SEE VENDOR
DRAWING
FAULT
P2
A-B A-B
P1
A,B
LHS
P1
A,B
RHS
RHS
A-B A-B
LHS
WIND SCREEN
FRONT END LOADER
CU CONCENTRATE LOADING
CONCENTRATE EMERGENCY
STORAGE 43,000T
C2-3630-BN-041
C2-3630-ZM-065
C2-3630-ST-067
C2-3630-PP-037
C2-3630-CV-044
C2-3630-ST-097
D
4
F
B
A
3
2
1 5 6 8
E
7
C
REV.
APPROVED
CHK.
DES.
REV. DATE REVISION DESCRIPTION
CLIENT
LEAD ENGINEER
SCALE DRAWING NUMBER
CHECK DESIGN CHECK DRAWING
DESIGNED BY DRAWN BY
APPROVAL DATE
APPROVAL DATE
APPROVED
CHK.
DES.
REV. DATE REVISION DESCRIPTION REFERENCE DRAWING No.
1:100
0
1:200
5m
10m
0
5m
10m
15m
20m
1:500
10m
0
20m
30m
40m
50m
1:1000
0
100m
50m
1:20
0
0.5m
1m
1.5m
2m
0
1:25
0.5m
1m
1.5m
1:33
1/3
2.5m
2m
0
1m
2m
3m
0
1:50
1m
2m
3m
4m
5m
CAD FILE NAME: P:0CAD000SPEM**
MODEL UPDATED:
DWG. FILE UPDATED:
MANUAL CHANGES MADE: YES NO YES NO YES NO
PROJECT MANAGER
ENGINEERING MANAGER
AREA PROJECTENGINEER
REFERENCE DRAWINGS
SAFETY SHARE:
APPROVAL DATE
CONTRACT
NO.
SAFETY SHARE :
BA6CVA1.IGR
NOTICE: THIS DRAWING HAS NOT BEEN PUBLISHED AND IS THE SOLE
PROPERTY OF FLUOR AND IS LENT TO THE BORROWER FOR THEIR
CONFIDENTIAL USE ONLY, AND IN CONSIDERATION OF THE LOAN OF THIS
DRAWING, THE BORROWER PROMISES AND AGREES TO RETURN IT UPON
REQUEST AND AGREES THAT IT WILL NOT BE REPRODUCED, COPIED LENT
OR OTHERWISE DISPOSED OF DIRECTLY OR INDIRECTLY, NOR USED FOR
ANY OTHER PURPOSE OTHER THAN WHICH IT IS FURNISHED.
NONE
Apr 2011
240K-C2-
SIZE:
MATERIAL:
MOTOR:
C2-3630-PP-037
CONCENTRATE WASH LOADING STATION SUMP PUMP
15 T
LHS LHS
3630
01705
ZSHH
3630
01704
ZSHH
CU FILTER DISCHARGE
CU CONC. FILTER NO. 1
C2-3610-FL-001
2296 3600-25J-007
CU FILTER DISCHARGE
CU CONC. FILTER NO. 2
C2-3610-FL-002
2301 3600-25J-012
CU FILTER DISCHARGE
CU CONC. FILTER NO. 3
C2-3610-FL-003
2302 3600-25J-013
FRESH WATER
2303
CONC. LOADING SUMP
CU CONC. THICKENER FEED
BOX, C2-3610-BX-001
2304 3600-25J-001
T8
T1
SIZE:
C2-3630-ST-067
TRUCK LOADOUT CONVEYOR HEAD CHUTE
SIZE:
MOTOR:
C2-3630-ZM-065
CU CONCENTRATE LOADING SPOUT
SIZE:
MOTOR:
C2-3630-CV-044
TRUCK LOADOUT CONVEYOR (AFD)
V
SIZE:
C2-3630-ST-097
CONCENTRATE LOADOUT FEED HOPPER
3630-WF-1200-C1A-2"-N
V
ES
V
SIZE:
C2-3630-BN-041
CONCENTRATE WEIGH BIN
V
ES
3630
01703 B
SE
3630
01703 B
ST
3630
01703 B
SI
3630
01703
SI
ES
3630
01703
SDI H, P2
3630
01710
WQI
3630
01710
WIC
H, P2
3630
01784
II
C2-3630-CV-090
3630
01784
XA
C2-3630-DC-641
3630
01783
XA
3630
01783
HS
TO ATMOSPHERE
3630
01783
II
3630
01785
II
3630
01785
XA
3630
01785
HS
FAULT
J/SP
FAULT
FAULT
M
J/SP
J/SP
3630
01784
HS
C2-3630-ZV-090 T1
T1
FROM DUST
COLLECTION POINTS
C2-3630-FA-641
C2-3630-ST-139
AG
KM
LT
ISSUED FOR CLIENT REVIEW
22-Dec-11
B
RP
ISSUED FOR COMBINED REVIEW
30-Jun-11
A
12/22/2011
K. MUNDY
A. GUNSON
A. REGNAULT
L. TAMELIN
12/22/2011
2:13:25
PM
WBS: 3630
B
PIPING AND INSTRUMENTATION DIAGRAM
CONCENTRATE STORAGE
3600-25J-017
CU CONCENTRATE LOADOUT
SIZE:
C2-3630-ST-139
LOADOUT FEED HOPPER SKIRTS
SIZE:
MOTOR:
C2-3630-FA-641
CONCENTRATE STORAGE AREA DUST COLLECTOR EXHAUST FAN
SIZE:
C2-3630-DC-641
CONCENTRATE STORAGE AREA DUST COLLECTOR
SIZE:
MOTOR:
C2-3630-CV-090
CONCENTRATE STORAGE AREA DUST COLLECTOR SCREW CONVEYOR
SIZE:
MOTOR:
C2-3630-ZV-090
CONCENTRATE STORAGE AREA DUST COLLECTOR ROTARY VALVE
15 T 15 T 15 T
FAULT
15 T 15 T
NOTE 1
NOTES:
1. CONTRACTOR SUPPLY.
3630
01705
ZAHH
3630
01704
ZAHH
P1
P2
P1
P2
3630
01715
XA
OP/CL
MISMATCH
3630-SL-1579-C1B-4"-N
3630-WF-1447-C1B-1"-N
3630-WF-1448-C1A-2"-N
4090
3630
01710
WE
DUCTING
VENDOR
3710
00111
HS
OP/CL
L/R
3710
00101
HS
OP/CL
L/R
3710
00102
HIC
3710
00101
XA
M
M
M
M
3710
00131
HS
OP/CL
L/R
3710
00131
ZS
3710
00121
HS
OP/CL
L/R
3710
00121
ZS
3710
00101
ZS
3710
00131
XA
3710
00121
XA
3710
00111
XA
3710
00111
ZS
PROCESS WATER
TAILING THICKENER NO. 3,
C2-3710-TK-029
2852 3700-25J-006
TAILING
TAILING THICKENER NO. 3,
C2-3710-TK-029
2378 3700-25J-006
TAILING
TAILING THICKENER NO. 2,
C2-3710-TK-012
2314 3700-25J-004
SUMP CONTENTS
NAHS AREA SUMP PUMP,
C2-3510-PP-165
2311 3500-25J-035
SUMP CONTENTS
GRINDING AREA SUMP PUMP,
C2-3310-PP-103
1317 3300-25J-022
MILK OF LIME
LIME DISTRIBUTION PUMPS,
C2-3920-PP-093/094
3301 3900-25J-012
SCAVENGER TAILING
SCAV. TAILING ROW NO. 6
SAMPLER, C2-3410-SA-602
1096 3400-25J-017
TAIL. FLOC. SUMP CONT.
TAILING FLOCCULANT AREA
SUMP PUMP, C2-3710-PP-159
2312 3700-25J-014
PROCESS WATER
TAILING THICKENER
FLOCCULANT SYSTEM
2317 3700-25J-014
PROCESS WATER
TAILING THICKENER NO. 2,
C2-3710-TK-012
2320 3700-25J-004
PROCESS WATER
TAILING THICKENER NO. 4,
C2-3710-TK-030
2322 3700-25J-011
SCAVENGER TAILING
SCAV. TAILING ROW NO. 3
SAMPLER, C2-3410-SA-302
1189 3400-25J-012
SCAVENGER TAILING
SCAV. TAILING ROW NO. 2
SAMPLER, C2-3410-SA-202
1051 3400-25J-004
SCAVENGER TAILING
SCAV. TAILING ROW NO. 5
SAMPLER, C2-3410-SA-502
1095 3400-25J-017
CLARIFIER O/F
CONC. CLARIFIER O/F PUMPS,
C2-3610-PP-002/009
2291 3600-25J-004
SCAVENGER TAILING
SCAV. TAILING ROW NO. 1
SAMPLER, C2-3410-SA-102
1050 3400-25J-004
TAILING
TAILING THICKENER NO. 4,
C2-3710-TK-030
2316 3700-25J-011
PROCESS WATER
RECYCLE WATER
COLLECTION POND,
2318 3700-25J-013
SCAVENGER TAILING
SCAV. TAILING ROW NO. 4
SAMPLER, C2-3410-SA-402
1190 3400-25J-012
REAGENT AREA SUMP PUMP,
C2-3910-PP-149
2307 3900-25J-001
C2-3410-SA-531
NOTE 1
MISMATCH
C2-3410-SA-534
MISMATCH
OP/CL
NOTE 1
NOTE 1
NOTES:
1. MINIMUM DISTANCE TO BE MAINTAINED BETWEEN VALVE AND FITTINGS OF FLANGES.
NOTE 1
OP/CL
MISMATCH
OP/CL
C2-3710-PD-001
OP/CL
MISMATCH
3410-SL-1666-R1B-48"-N
20"x16"
SIZE:
C2-3710-LA-001
TAILING COLLECTION LAUNDER NO.1
3710-SL-1676-R1B-60"-N
3710-WR-1926-C1A-6"-N
3710-WR-1930-C1A-1-1/2"-N
3710-WR-1927-C1A-2"-N
3410-SL-1667-R1A-26"-N
24"x20"
3710-RE-1012-C1A-4"-N
3410-SL-1661-R1B-48"-N
3710-SL-1681-R1B-60"-N
ES
ES
3710-WR-1929-C1A-16"-N
ES
ES
2"x1-1/2"
3710-SL-1677-R1B-16"-N
3410-SL-1662-R1B-48"-N
3710
00111
XV
+
24"x16"
3710-WR-1933-C1A-8"-N
3710
00131
XV
+
C2-3710-SA-001
3410-SL-1391-R1A-6"-N
3710-WR-1931-C1A-1-1/2"-N
3410-SL-1664-R1B-48"-N
3710-SL-1679-R1B-60"-N
3710-WR-1934-C1A-8"-N
3710
00121
XV
+
3710-SL-1680-R1B-60"-N
3410-SL-1665-R1B-48"-N
3710-WR-1932-C1A-8"-N
3610-WR-1912-C1A-12"-N
SIZE:
MATERIAL:
CAPACITY:
TRIM:
C2-3710-DI-002
TAILING THICKENER FEED DISTRIBUTOR
3910-DR-1012-C1B-3"-N
3930-WR-1211-C1A-24"-N
3710-WR-1935-C1A-8"-N
SIZE:
C2-3710-AZ-001
PLANT TAILING-COMPOSITE ANALYZER
C2-3710-AZ-001
3710-SL-1690-C1B-8"-N
3710-RL-1030-C1B-1-1/2"-N
SIZE:
C2-3710-SA-001
PLANT TAILING-COMPOSITE SAMPLER
C2-3710-DI-002
3410-SL-1392-R1A-26"-N
C2-3710-LA-001
3710-SL-1682-R1B-60"-N
3710-WR-1924-C1A-20"-N
3710
00101
XV
+
3510-RS-1039-S1B-3"-N
3310-DR-1006-C1B-6"-N
3410-SL-1663-R1B-48"-N
AG
KM
LT
ISSUED FOR CLIENT REVIEW
19-Dec-11
B
RP
NOT USED
05-Jul-11
A
12/19/2011
K. MUNDY
A. GUNSON
A. REGNAULT
L. TAMELIN
12/19/2011
6:04:45
PM
WBS: 3710
B
PIPING AND INSTRUMENTATION DIAGRAM
TAILING THICKENING
3700-25J-001
FLOTATION TAILING AND SAMPLING
D
4
F
B
A
3
2
1 5 6 8
E
7
C
REV.
APPROVED
CHK.
DES.
REV. DATE REVISION DESCRIPTION
CLIENT
LEAD ENGINEER
SCALE DRAWING NUMBER
CHECK DESIGN CHECK DRAWING
DESIGNED BY DRAWN BY
APPROVAL DATE
APPROVAL DATE
APPROVED
CHK.
DES.
REV. DATE REVISION DESCRIPTION REFERENCE DRAWING No.
1:100
0
1:200
5m
10m
0
5m
10m
15m
20m
1:500
10m
0
20m
30m
40m
50m
1:1000
0
100m
50m
1:20
0
0.5m
1m
1.5m
2m
0
1:25
0.5m
1m
1.5m
1:33
1/3
2.5m
2m
0
1m
2m
3m
0
1:50
1m
2m
3m
4m
5m
CAD FILE NAME: P:0CAD000SPEM**
MODEL UPDATED:
DWG. FILE UPDATED:
MANUAL CHANGES MADE: YES NO YES NO YES NO
PROJECT MANAGER
ENGINEERING MANAGER
AREA PROJECTENGINEER
REFERENCE DRAWINGS
SAFETY SHARE:
APPROVAL DATE
CONTRACT
NO.
SAFETY SHARE :
BA6CVA1.IGR
NOTICE: THIS DRAWING HAS NOT BEEN PUBLISHED AND IS THE SOLE
PROPERTY OF FLUOR AND IS LENT TO THE BORROWER FOR THEIR
CONFIDENTIAL USE ONLY, AND IN CONSIDERATION OF THE LOAN OF THIS
DRAWING, THE BORROWER PROMISES AND AGREES TO RETURN IT UPON
REQUEST AND AGREES THAT IT WILL NOT BE REPRODUCED, COPIED LENT
OR OTHERWISE DISPOSED OF DIRECTLY OR INDIRECTLY, NOR USED FOR
ANY OTHER PURPOSE OTHER THAN WHICH IT IS FURNISHED.
NONE
Apr 2011
240K-C2-
3710
00102
HV
+
3710-WR-1925-C1A-1-1/2"-N
3710-SL-1678-R1B- -
PROCESS WATER
TAILING COLLECTION BOX,
C2-3810-BX-102
3700 3800-25J-001
3710-WR-1968-C1A-16"-N
3710-WR-1928-C1A-1-1/2"-N
PROCESS WATER
2890 3900-25J-015
TAILING
TAILING THICKENER NO. 1,
C2-3710-TK-011
3701 3700-25J-002
SUMP CONTENTS
TAILING AREA SUMP PUMP,
C2-3710-PP-130
2766 3700-25J-002
PROCESS WATER
TAILING THICKENER NO. 1,
C2-3710-TK-011
3702 3700-25J-002
3710
00103
HV
+
FC
3710
00103
HY
3710
00103
HIC
AI
p
D
CLEANER SCAV. TAILING
CLEANER INSTREAM
ANALYZER, C2-3410-AZ-509
2732 3400-25J-053
FI
FI
FI
FI
3410-SL-1392-R1A-6"-N
EMERGENCY SUMP RETURN
REGRIND EMERGENCY O/F
SUMP PUMP, C2-3420-PP-539
3812 3400-25J-032
FLOOR SPILL
GRINDING BASEMENT
EMERGENCY SPILL
3927 3300-25J-022
CLEANER SCAV. TAILING
CLEANER SCAVENGER
TAILING SAMPLER NO. 2,
2751 3400-25J-048
CLEANER SCAV. TAILING
CLEANER SCAVENGER
TAILING SAMPLER NO. 1,
2750 3400-25J-048
CLEANER SCAV. TAILING
CLEANER INSTREAM
ANALYZER, C2-3410-AZ-509
2733 3400-25J-053
3710-SL- -HOK-48"-N
3710-SL-1269-C1B-6"-N
T8
T3
P.O NO.:
VENDOR DWG NO.:
VENDOR:
3710
00203
PIT
3710
00203
PIC
3710
00205
PI
3710
00201
FIC
3710
00201
FY
3710
00243
XA
3710
00282
II
3710
00228
ZS
OP/CL
3710
00212
XA
3710
00202
LE
3710
00236
XA
3710
00204
FIT
3710
00229
ZS
3710
00229
XA
M
3710
00281
II
3710
00238
ZS
3710
00212
ZS
3710
00209
XA
3710
00282
XA FAULT
OP/CL
3710
00207
XA
OP/CL
3710
00209
ZS
3710
00202
LI
H, P2
HH, P1
L, P2
3710
00201
DIC
3710
00238
XA
3710
00237
ZS
3710
00207
ZS
3710
00206
XA
3710
00237
XA
3710
00239
XA
3710
00204
FI L, P2
LL, P1
3710
00219
XA
OP/CL
3710
00219
ZS
3710
00206
ZS
3710
00281
HS
J/SP
3710
00208
XA
3710
00208
ZS
3710
00217
ZS
3710
00217
XA
OP/CL
3710
00218
ZS
3710
00218
XA
3710
00226
XA
3710
00216
XA
3710
00216
ZS
OP/CL
3710
00228
XA
3710
00226
ZS
3710
00227
XA
3710
00227
ZS
OP/CL
3710
00239
ZS
3710
00236
ZS
OP/CL
3710
00205
PIT
3710
00222
XA
3710
00222
ZS
OP/CL
3710
00223
ZS
3710
00223
XA
3710
00213
XA
3710
00213
ZS
OP/CL
3710
00201
WQI MASS
FLOW
3710
00281
XA
3710
00201
FIT
3710
00202
LIT
FLOCCULANT
TAILING THICKENER
FLOCCULANT SYSTEM
2325 3700-25J-014
TAILING THICKENER U/F
THICKENER NO.1 U/F
RECYCLE, C2 3710-PP-027
2326 3700-25J-003
TAILING THICKENER O/F
RECYCLE WATER
COLLECTION POND,
2329 3700-25J-013
TAILING THICKENER U/F
TAILING THICKENER NO.1
RECYCLE PUMP,
2330 3700-25J-003
TAILING THICKENER U/F
TAILING COLLECTION BOX,
C2-3810-BX-102
2369 3800-25J-001
OP/CL
OP/CL
OP/CL
OP/CL
OP/CL
OP/CL
OP/CL
OP/CL
OP/CL
OP/CL
FAULT
H, P2
L, P2
L, P2
MIN.
MIN.
L, P2
LL, P2
AFD
MIN.
SELECT
C2-3710-PD-001
C2-3710-PP-027
24"x16"
3710
00229
XV
+
3710
00238
XV
+
C2-3710-TM-011
3710
00222
XV
+
3710-WR-1942-C1A-1-1/2"-N
FI
FI
C1A
3710-SL-1683-R1B-24"-N
3710-SL-1686-R1B-24"-N
SIZE:
C2-3710-TK-011
TAILING THICKENER NO.1 TANK
3710-WR-1938-C1A-8"-N
3710-SL-1688-R1B-16"-N
3710-SL-1685-R1B-24"-N
FI
3710-SL-1693-R1B-16"-N
3710
00226
XV
+
3710-WR-1937-C1A-1-1/2"-N
SIZE:
MATERIAL:
MOTOR:
C2-3710-PP-030
TAILING THICKENER NO.1 U/F PUMP (AFD)
3710-SL-1679-R1B-60"-N
3710-WR-1939-C1A-2"-N
SIZE:
MATERIAL:
MOTOR:
C2-3710-TM-011
TAILING THICKENER NO.1 MECHANISM
3710-SL-1690-C1B-8"-N
R1B
3710-RE-1001-C1A-4"-N
3710-WR-1941-C1A-8"-N
FI FI
3710
00216
XV
+
C2-3710-PP-130
C2-3710-PP-030
3710-WR-1001-C1A-48"-N
3710-WR-1940-C1A-8"-N
FI
FI
FI
24"x16"
3"x1-1/2"
3710
00236
XV
+
3710-WG-1015-C1A-2"-N
3710-SL-1684-R1B-24"-N
3710
00239
XV
+
C2-3710-TK-011
3710
00209
XV
+
3710
00223
XV
+
3710
00201
FE
+
3710
00213
XV
+
3710
00218
XV
+
18"x16"
3710
00208
XV
+
3"x2"
3710
00228
XV
+
3710
00207
XV
+
18"x16"
24"x16"
3710
00219
XV
+
3710
00227
XV
+
3710
00237
XV
+
3710
00212
XV
+
24"x16"
3710
00206
XV
+
3710
00217
XV
+
2"x1-1/2"
AG
KM
LT
ISSUED FOR CLIENT REVIEW
19-Dec-11
B
RP
NOT USED
05-Jul-11
A
12/19/2011
K. MUNDY
A. GUNSON
A. REGNAULT
L. TAMELIN
12/19/2011
5:01:08
PM
WBS: 3710
B
PIPING AND INSTRUMENTATION DIAGRAM
TAILING THICKENING
3700-25J-002
TAILING THICKENER NO. 1
D
4
F
B
A
3
2
1 5 6 8
E
7
C
REV.
APPROVED
CHK.
DES.
REV. DATE REVISION DESCRIPTION
CLIENT
LEAD ENGINEER
SCALE DRAWING NUMBER
CHECK DESIGN CHECK DRAWING
DESIGNED BY DRAWN BY
APPROVAL DATE
APPROVAL DATE
APPROVED
CHK.
DES.
REV. DATE REVISION DESCRIPTION REFERENCE DRAWING No.
1:100
0
1:200
5m
10m
0
5m
10m
15m
20m
1:500
10m
0
20m
30m
40m
50m
1:1000
0
100m
50m
1:20
0
0.5m
1m
1.5m
2m
0
1:25
0.5m
1m
1.5m
1:33
1/3
2.5m
2m
0
1m
2m
3m
0
1:50
1m
2m
3m
4m
5m
CAD FILE NAME: P:0CAD000SPEM**
MODEL UPDATED:
DWG. FILE UPDATED:
MANUAL CHANGES MADE: YES NO YES NO YES NO
PROJECT MANAGER
ENGINEERING MANAGER
AREA PROJECTENGINEER
REFERENCE DRAWINGS
SAFETY SHARE:
APPROVAL DATE
CONTRACT
NO.
SAFETY SHARE :
BA6CVA1.IGR
NOTICE: THIS DRAWING HAS NOT BEEN PUBLISHED AND IS THE SOLE
PROPERTY OF FLUOR AND IS LENT TO THE BORROWER FOR THEIR
CONFIDENTIAL USE ONLY, AND IN CONSIDERATION OF THE LOAN OF THIS
DRAWING, THE BORROWER PROMISES AND AGREES TO RETURN IT UPON
REQUEST AND AGREES THAT IT WILL NOT BE REPRODUCED, COPIED LENT
OR OTHERWISE DISPOSED OF DIRECTLY OR INDIRECTLY, NOR USED FOR
ANY OTHER PURPOSE OTHER THAN WHICH IT IS FURNISHED.
NONE
Apr 2011
240K-C2-
SUMP CONTENTS
TAILING COLLECTION
LAUNDER NO. 1,
2313 3700-25J-001
GLAND SEAL WATER
2950 3900-25J-023
FI
FI
FI FI
FI FI
FI
FI
NOTE 1
NOTE 1
NOTE 1
NOTE 1
NOTE 1
V
NOTES:
1. MINIMUM DISTANCE
3710
00201
DIT
3710
00201
DX
3710
00201
DE
3710
00201
HY
3710-WR-1932-C1A-8"-N
3710-WR-1943-C1A-8"-N
3710-SL-1689-R1B-24"-N
3710-WR-1944-C1A-8"-N
TAILING
TAILING THICKENER FEED
DISTRIBUTOR, C2-3710-DI-002
3701 3700-25J-001
C2-3710-LA-001
PROCESS WATER
3702 3700-25J-001
MISMATCH
MISMATCH
MISMATCH
MISMATCH
MISMATCH
MISMATCH
MISMATCH
MISMATCH
MISMATCH
MISMATCH
MISMATCH
MISMATCH
MISMATCH
?
MISMATCH
MISMATCH
MISMATCH
MISMATCH
MISMATCH
MISMATCH
MISMATCH
FI
C2-3710-ZM-120
26"x24"
3710
00282
HS
3710
00243
XV
+
FI
3710
00243
ZS
OP/CL
M
M 3710
00242
XV
+
3710
00242
HS
3710
00242
ZS
OP/CL
L/R
3710
00242
XA
MISMATCH
OP/CL
V3
ES
C2-3710-PP-759
C2-3710-PW-068
SIZE:
MATERIAL:
MOTOR:
C2-3710-PP-759
TAILING THICKENER U/F PUMP UNINSTALLED SPARE
SIZE:
MATERIAL:
MOTOR:
C2-3710-PW-068
MOBILE SITE DRAINAGE PUMP-DIESEL
FI
FI
FI
FI
SIZE:
MATERIAL:
MOTOR:
C2-3710-PP-130
TAILING AREA SUMP PUMP
3710
00204
FE
+
ES
3710-SL-1687-R1B-30"-N
8"
T3
T3
T3
T3
3710
00324
FIT
3710
00324
FI
L, P2
LL, P1
3710
00304
FI
L, P2
LL, P1
3710
00315
PI
3710
00314
FIT
3710
00331
FIT
3710
00311
FIC
3710
00391
II
M
3710
00382
II
3710
00321
FIC
M
3710
00334
FIT
3710
00392
XA
3710
00314
FI
L, P2
LL, P1
3710
00392
HS
J/SP
3710
00335
PI
3710
00305
PI
M
3710
00392
II
3710
00311
FIT
M
3710
00391
XA
3710
00334
FI
L, P2
LL, P1
M
3710
00321
FIT
M
3710
00335
PIT
3710
00382
HS
J/SP
3710
00331
FIC
3710
00325
PIT
3710
00381
II
3710
00304
FIT
3710
00325
PI
M
3710
00381
HS
J/SP
3710
00382
XA
3710
00315
PIT
3710
00305
PIT
3710
00301
FIT
M
3710
00301
FIC
3710
00391
HS
J/SP
3710
00381
XA
L, P2
L, P2
L, P2
TAILING THICKENER U/F
THICKENER NO.1 FEED WELL,
C2-3710-TK-011
2326 3700-25J-002
TAILING THICKENER U/F
THICKENER NO.1 U/F,
C2-3710-TK-011
2330 3700-25J-002
TAILING THICKENER U/F
THICKENER NO.2 FEED WELL,
C2-3710-TK-012
2334 3700-25J-004
TAILING THICKENER U/F
THICKENER NO.3 FEED WELL,
C2-3710-TK-039
2335 3700-25J-006
TAILING THICKENER U/F
THICKENER NO.4 FEED WELL,
C2-3710-TK-040
2336 3700-25J-011
TAILING THICKENER U/F
THICKENER NO.2 U/F,
C2-3710-TK-012
2343 3700-25J-004
TAILING THICKENER U/F
THICKENER NO.3 U/F,
C2-3710-TK-029
2344 3700-25J-006
TAILING THICKENER U/F
THICKENER NO.4 U/F,
C2-3710-TK-030
2345 3700-25J-011
AFD
AFD
FAULT
AFD
FAULT
FAULT
AFD
FAULT
AG
KM
LT
ISSUED FOR CLIENT REVIEW
19-Dec-11
B
RP
NOT USED
05-Jul-11
A
12/19/2011
K. MUNDY
A.GUNSON
A. REGNAULT
L.TAMELIN
12/19/2011
6:11:41
PM
WBS: 3710
B
PIPING AND INSTRUMENTATION DIAGRAM
TAILING THICKENING
3700-25J-003
TAILING THICKENER RECYCLE PUMPS
SIZE:
MATERIAL:
MOTOR:
C2-3710-PP-028
TAILING THICKENER NO. 2 RECYCLE PUMP
ES
3710-SL-1688-R1B-16"-N
3710-WG-1095-C1A-2"-N
3710-SL-1694-R1B-16"-N
SIZE:
MATERIAL:
MOTOR:
C2-3710-PP-039
THICKENER NO. 4 RECYCLE PUMP
3710-SL-1715-R1B-16"-N
3710-SL-1708-R1B-16"-N
SIZE:
MATERIAL:
MOTOR:
C2-3710-PP-027
TAILING THICKENER NO. 1 RECYCLE PUMP
3710-SL-1693-R1B-16"-N
ES
3710-SL-1700-R1B-16"-N
3710-SL-1691-R1B-16"-N
SIZE:
MATERIAL:
MOTOR:
C2-3710-PP-038
THICKENER NO. 3 RECYCLE PUMP
ES
3710-WG-1096-C1A-2"-N
ES
3710-SL-1692-R1B-16"-N
C2-3710-PP-027
3"x2"
3"x2"
3"x2"
3"x2"
2"x1-1/4"
3710
00331
FE
+
3710
00304
FE
+
C2-3710-PP-028
3710
00324
FE
+
3710
00311
FE
+
3710
00314
FE
+
3710
00301
FE
+
3710
00334
FE
+
2"x1-1/4"
16"x12"
2"x1-1/4"
3710
00321
FE
+
3"x2"
C2-3710-PP-038
16"x12"
16"x14"
3"x2"
2"x1-1/4"
3"x2"
16"x14"
16"x14"
16"x12" 16"x14"
3"x2"
16"x12"
3710-WG-1093-C1A-2"-N
3610-WG-1094-C1A-2"-N
3710
00328
XV
+
3710
00339
XV
+
3710
00308
XV
+
3710
00318
XV
+
C2-3710-PP-039
D
4
F
B
A
3
2
1 5 6 8
E
7
C
REV.
APPROVED
CHK.
DES.
REV. DATE REVISION DESCRIPTION
CLIENT
LEAD ENGINEER
SCALE DRAWING NUMBER
CHECK DESIGN CHECK DRAWING
DESIGNED BY DRAWN BY
APPROVAL DATE
APPROVAL DATE
APPROVED
CHK.
DES.
REV. DATE REVISION DESCRIPTION REFERENCE DRAWING No.
1:100
0
1:200
5m
10m
0
5m
10m
15m
20m
1:500
10m
0
20m
30m
40m
50m
1:1000
0
100m
50m
1:20
0
0.5m
1m
1.5m
2m
0
1:25
0.5m
1m
1.5m
1:33
1/3
2.5m
2m
0
1m
2m
3m
0
1:50
1m
2m
3m
4m
5m
CAD FILE NAME: P:0CAD000SPEM**
MODEL UPDATED:
DWG. FILE UPDATED:
MANUAL CHANGES MADE: YES NO YES NO YES NO
PROJECT MANAGER
ENGINEERING MANAGER
AREA PROJECTENGINEER
REFERENCE DRAWINGS
SAFETY SHARE:
APPROVAL DATE
CONTRACT
NO.
SAFETY SHARE :
BA6CVA1.IGR
NOTICE: THIS DRAWING HAS NOT BEEN PUBLISHED AND IS THE SOLE
PROPERTY OF FLUOR AND IS LENT TO THE BORROWER FOR THEIR
CONFIDENTIAL USE ONLY, AND IN CONSIDERATION OF THE LOAN OF THIS
DRAWING, THE BORROWER PROMISES AND AGREES TO RETURN IT UPON
REQUEST AND AGREES THAT IT WILL NOT BE REPRODUCED, COPIED LENT
OR OTHERWISE DISPOSED OF DIRECTLY OR INDIRECTLY, NOR USED FOR
ANY OTHER PURPOSE OTHER THAN WHICH IT IS FURNISHED.
NONE
Apr 2011
240K-C2-
3710
00328
ZS
3710
00339
ZS
3710
00328
XA
3710
00339
XA
OP/CL
OP/CL
MISMATCH
MISMATCH
3710
00318
ZS
3710
00318
XA
OP/CL
MISMATCH
3710
00308
ZS
3710
00308
XA
OP/CL
MISMATCH
GLAND SEAL WATER
3302 3900-25J-023
ES
ES
8"
FI
8"
FI
8"
FI
8"
FI
L,P2
T3
P.O NO.:
VENDOR DWG NO.:
VENDOR:
3700-25J-304
3710
00423
XA
MISMATCH
3710
00427
XA
3710
00423
ZS
OP/CL
3710
00417
XA
OP/CL
3710
00417
ZS
3710
00409
ZS
MISMATCH
3710
00405
PI
3710
00408
ZS
3710
00408
XA
3710
00406
ZS
3710
00405
PIT
3710
00419
ZS
OP/CL
3710
00419
XA
3710
00422
ZS
OP/CL
3710
00412
ZS
3710
00406
XA
MISMATCH
3710
00403
PIC
3710
00422
XA
3710
00412
XA
3710
00407
ZS
OP/CL
3710
00403
PIT
3710
00401
FIC
M
3710
00407
XA
MISMATCH
3710
00401
FIT
M
3710
00409
XA
3710
00436
ZS
OP/CL
3710
00439
ZS
3710
00404
FIT
3710
00428
ZS
OP/CL
MISMATCH
3710
00404
FI L, P2
LL, P1
3710
00428
XA
MISMATCH
3710
00426
XA
3710
00426
ZS
3710
00439
XA
3710
00482
XA FAULT
3710
00437
XA
3710
00482
II
3710
00437
ZS
3710
00482
HS
3710
00443
ZS
MISMATCH
3710
00413
ZS
OP/CL
3710
00438
XA
3710
00418
XA
3710
00443
XA
3710
00401
HY
3710
00438
ZS
3710
00413
XA
MISMATCH
3710
00401
WQI MASS
FLOW
3710
00418
ZS
3710
00401
DIC
3710
00401
FY
3710
00429
XA
3710
00416
ZS
OP/CL
3710
00429
ZS
3710
00416
XA
3710
00436
XA
MISMATCH
3710
00427
ZS
MISMATCH
3710
00401
DE
3710
00401
DX
3710
00401
DIT
3710
00442
XA
M
3710
00442
ZS
3710
B
HS
OP/CL
L/R
MISMATCH
GLAND SEAL WATER
2951 3900-25J-023
FLOCCULANT
FLOCCULANT METERING
PUMP
2373 3700-25J-014
TAILING THICKENER U/F
TAILING COLLECTION BOX,
C2-3810-BX-102
2374 3800-25J-001
PROCESS WATER
2320 3700-25J-001
TAILING
TAILING THICKENER FEED
DISTRIBUTOR, C2-3710-DI-002
2314 3700-25J-001
TAILING THICKENER U/F
THICKENER NO. 2 U/F
RECYCLE, C2-3710-PP-028
2334 3700-25J-003
TAILING THICKENER U/F
TAILING THICKENER NO.2
RECYCLE PUMP,
2343 3700-25J-003
TAILING THICKENER O/F
RECYCLE WATER
COLLECTION POND,
2348 3700-25J-013
OP/CL
L, P2
L, P2
LL, P2
OP/CL
OP/CL
MIN.
MIN.
MIN.
OP/CL
OP/CL
AFD
OP/CL
SELECT
OP/CL
H, P2
L, P2
OP/CL
OP/CL
OP/CL
OP/CL
C2-3710-PP-028
C2-3710-PD-001
NOTE 1
NOTE 1
NOTE 1
NOTE 1
NOTE 1
MISMATCH
MISMATCH
MISMATCH
MISMATCH
MISMATCH
MISMATCH
MISMATCH
MISMATCH
MISMATCH
MISMATCH
MISMATCH
OP/CL
24"x16"
2"x1-1/2"
3710-WR-1949-C1A-8"-N
SIZE:
MATERIAL:
MOTOR:
C2-3710-TM-012
TAILING THICKENER NO.2 MECHANISM
R1B
3710-WR-1947-C1A-2"-N
C2-3710-PP-031
3"x1-1/2"
3"x2"
3710-RE-1002-C1A-4"-N
3710-WR-1945-C1A-1-1/2"-N
FI
FI
3710
00419
XV
+
FI
3710-SL-1696-R1B-24"-N
3710-WR-1948-C1A-8"-N
3710
00436
XV
+
3710
00438
XV
+
3710
00404
FE
+
3710
00437
XV
+
3710
00439
XV
+
C2-3710-TK-012
3710-WR-1952-C1A-8"-N
3710-SL-1701-R1B-24"-N
3710-WR-1933-C1A-8"-N
3710-WR-1951-C1A-8"-N
3710-WR-1002-C1A-48"-N
3710-WG-1026-C1A-2"-N
3710
00416
XV
+
FI
3710
00418
XV
+
3710-SL-1694-R1B-16"-N
3710
00423
XV
+
3710-SL-1697-R1B-24"-N
3710
00442
XV
+
V3
3710-SL-1700-R1B-16"-N
3710-SL-1680-R1B-60"-N
3710
00406
XV
+
3710-WR-1946-C1A-8"-N
SIZE:
C2-3710-TK-012
TAILING THICKENER NO.2 TANK
3710-SL-1698-R1B-24"-N
3710-SL-1699-R1B-30"-N
3710
00426
XV
+
3710-SL-1695-R1B-24"-N
3710
00412
XV
+
3710
00428
XV
+
3710
00401
FE
+
C2-3710-TM-012
FI
3710
00417
XV
+
FI
3710
00409
XV
+
24"x16"
3710-WR-1947-C1A-1-1/2"-N
3710
00427
XV
+
24"x16"
3710
00443
XV
+
FI
18"x16"
3710
00413
XV
+
24"x16"
FI
3710
00429
XV
+
3710
00422
XV
+
18"x16"
SIZE:
MATERIAL:
MOTOR:
C2-3710-PP-031
TAILING THICKENER NO.2 U/F PUMP (AFD)
3710
00408
XV
+
3710-WR-1933-C1A-8"-N
3710
00407
XV
+
C1A
ES
ES
FL
AG
KM
LT
ISSUED FOR CLIENT REVIEW
19-Dec-11
B
RP
NOT USED
05-Jul-11
A
12/19/2011
K. MUNDY
A.GUNSON
A. REGNAULT
L.TAMELIN
12/19/2011
6:12:40
PM
WBS: 3710
B
PIPING AND INSTRUMENTATION DIAGRAM
TAILING THICKENING
3700-25J-004
TAILING THICKENER NO. 2
ES
V
ES
FI
26"x24"
FI
FI
FI
FI
FI
FI
FI FI
FI
FI
FI
FI
8"
D
4
F
B
A
3
2
1 5 6 8
E
7
C
REV.
APPROVED
CHK.
DES.
REV. DATE REVISION DESCRIPTION
CLIENT
LEAD ENGINEER
SCALE DRAWING NUMBER
CHECK DESIGN CHECK DRAWING
DESIGNED BY DRAWN BY
APPROVAL DATE
APPROVAL DATE
APPROVED
CHK.
DES.
REV. DATE REVISION DESCRIPTION REFERENCE DRAWING No.
1:100
0
1:200
5m
10m
0
5m
10m
15m
20m
1:500
10m
0
20m
30m
40m
50m
1:1000
0
100m
50m
1:20
0
0.5m
1m
1.5m
2m
0
1:25
0.5m
1m
1.5m
1:33
1/3
2.5m
2m
0
1m
2m
3m
0
1:50
1m
2m
3m
4m
5m
CAD FILE NAME: P:0CAD000SPEM**
MODEL UPDATED:
DWG. FILE UPDATED:
MANUAL CHANGES MADE: YES NO YES NO YES NO
PROJECT MANAGER
ENGINEERING MANAGER
AREA PROJECTENGINEER
REFERENCE DRAWINGS
SAFETY SHARE:
APPROVAL DATE
CONTRACT
NO.
SAFETY SHARE :
BA6CVA1.IGR
NOTICE: THIS DRAWING HAS NOT BEEN PUBLISHED AND IS THE SOLE
PROPERTY OF FLUOR AND IS LENT TO THE BORROWER FOR THEIR
CONFIDENTIAL USE ONLY, AND IN CONSIDERATION OF THE LOAN OF THIS
DRAWING, THE BORROWER PROMISES AND AGREES TO RETURN IT UPON
REQUEST AND AGREES THAT IT WILL NOT BE REPRODUCED, COPIED LENT
OR OTHERWISE DISPOSED OF DIRECTLY OR INDIRECTLY, NOR USED FOR
ANY OTHER PURPOSE OTHER THAN WHICH IT IS FURNISHED.
NONE
Apr 2011
240K-C2-
FI
NOTES:
1. MINIMUM DISTANCE
2"x1-1/2"
T3
P.O NO.:
VENDOR DWG NO.:
VENDOR:
3700-25J-306
3710
00638
XA
3710
00638
ZS
3710
00636
ZS
OP/CL
MISMATCH
3710
00643
XA
3710
00623
XA
3710
00608
XA
3710
00628
XA
MISMATCH
3710
00642
ZS
3710
00623
ZS
3710
00626
XA
MISMATCH
3710
00609
ZS
3710
00639
XA
3710
00617
XA
OP/CL
3710
00636
XA
3710
00601
WQI MASS
FLOW
3710
00612
ZS
3710
00643
ZS
3710
00605
PIT
3710
00619
XA
3710
00618
XA
3710
00639
ZS
OP/CL
3710
00604
FI L, P2
LL, P1
3710
00604
FIT
3710
00601
FY
3710
00601
HY
3710
00629
ZS
3710
00613
XA
MISMATCH
3710
00637
ZS
3710
00637
XA
3710
00609
XA
MISMATCH
3710
00616
XA
MISMATCH
3710
00619
ZS
3710
00682
HS
3710
00603
PIT
3710
00642
XA
3710
00628
ZS
OP/CL
3710
00682
II
3710
00616
ZS
OP/CL
3710
00613
ZS
OP/CL
3710
00618
ZS
3710
00607
ZS
3710
00601
FIT
3710
00682
XA
FAULT
3710
00627
XA
3710
00629
XA
3710
00622
XA
3710
00607
XA
3710
00601
DIC
M
3710
00626
ZS
3710
00606
XA
3710
00622
ZS
OP/CL
3710
00605
PI
3710
00627
ZS
OP/CL
3710
00601
FIC
OP/CL
3710
00603
PIC
M
3710
00608
ZS
3710
00617
ZS
3710
00606
ZS
3710
00612
XA
3710
00642 B
HS
3710
00601
DX
3710
00601
DE
3710
00601
DIT
PROCESS WATER
2852 3700-25J-001
GLAND SEAL WATER
2952 3900-25J-023
TAILING
TAILING THICKENER FEED
DISTRIBUTOR, C2-3710-DI-002
2378 3700-25J-001
FLOCCULANT
FLOCCULANT METERING
PUMP
2379 3700-25J-014
TAILING THICKENER U/F
TAILING COLLECTION BOX,
C2-3810-BX-102
2381 3800-25J-001
TAILING THICKENER U/F
THICKENER NO. 3 RECYCLE,
C2-3710-PP-038
2335 3700-25J-003
TAILING THICKENER U/F
TAILING THICKENER NO 3
RECYCLE PUMP,
2344 3700-25J-003
TAILING THICKENER O/F
RECYCLE WATER
COLLECTION POND,
2349 3700-25J-013
NOTES:
1. MINIMUM DISTANCE
NOTE 1
NOTE 1
NOTE 1
C2-3710-PD-001
C2-3710-PP-038
AFD
OP/CL
L, P2
OP/CL
OP/CL
OP/CL
OP/CL
SELECT
H, P2
L, P2
OP/CL
OP/CL
L, P2
LL, P2
MIN.
OP/CL
C2-3710-PD-001
OP/CL
MIN.
OP/CL OP/CL
OP/CL
MIN.
OP/CL
MISMATCH
MISMATCH
MISMATCH
MISMATCH
MISMATCH
MISMATCH
MISMATCH
MISMATCH
MISMATCH
MISMATCH
MISMATCH
MISMATCH
MISMATCH
MISMATCH
MISMATCH
MISMATCH
NOTE 1
NOTE 1
AG
KM
LT
ISSUED FOR CLIENT REVIEW
19-Dec-11
B
RP
NOT USED
05-Jul-11
A
12/19/2011
K. MUNDY
A. GUNSON
A. REGNAULT
L. TAMELIN
12/19/2011
6:13:37
PM
WBS: 3710
B
PIPING AND INSTRUMENTATION DIAGRAM
TAILING THICKENING
3700-25J-006
TAILING THICKENER NO. 3
V
3710-SL-1707-R1B-24"-N
3710-WR-1934-C1A-8"-N
3710-WR-1956-C1A-8"-N
3710-WR-1959-C1A-8"-N
3710-WR-1960-C1A-8"-N
FI FI
FI
FI
ES
ES
ES
FI
FL
FI
FI
FI
FI
FI
FI
FI FI
3710
00617
XV
+
3710
00613
XV
+
18"x16"
3710-SL-1703-R1B-24"-N
3"x1-1/2"
3710
00642
XV
+
3710-SL-1706-R1B-30"-N
3710
00618
XV
+
3710
00622
XV
+
3710-WR-1958-C1A-1-1/2"-N
SIZE:
MATERIAL:
MOTOR:
C2-3710-TM-013
TAILING THICKENER NO.3 MECHANISM
24"x16"
3710-WR-1003-C1A-48"-N
3710
00637
XV
+
3710
00623
XV
+
3710-SL-1681-R1B-60"-N
3710
00626
XV
+
3710
00606
XV
+
C2-3710-TK-11736 18"x16"
SIZE:
C2-3710-TK-11736
TAILING THICKENER NO.3 TANK
3710
00629
XV
+
3710
00643
XV
+
C2-3710-PP-040
C2-3710-TM-013
3710-SL-1691-R1B-16"-N
3710-WG-1027-C1A-2"-N
3710
00619
XV
+
SIZE:
MATERIAL:
MOTOR:
C2-3710-PP-040
TAILING THICKENER NO.3 U/F PUMP (AFD)
3710
00601
FE
+
3710
00627
XV
+
R1B
24"x16"
3710
00639
XV
+
3710-SL-1704-R1B-24"-N
3710-WR-1955-C1A-2"-N
C1A
3710-RE-1003-C1A-4"-N
3"x2"
3710-WR-1957-C1A-8"-N
3710
00612
XV
+
24"x16"
3710
00608
XV
+
3710-SL-1702-R1B-24"-N
3710-WR-1954-C1A-8"-N
3710
006
254815797-PLANOS-Estandares.pdf
254815797-PLANOS-Estandares.pdf
254815797-PLANOS-Estandares.pdf
254815797-PLANOS-Estandares.pdf
254815797-PLANOS-Estandares.pdf
254815797-PLANOS-Estandares.pdf
254815797-PLANOS-Estandares.pdf
254815797-PLANOS-Estandares.pdf
254815797-PLANOS-Estandares.pdf
254815797-PLANOS-Estandares.pdf
254815797-PLANOS-Estandares.pdf
254815797-PLANOS-Estandares.pdf
254815797-PLANOS-Estandares.pdf
254815797-PLANOS-Estandares.pdf
254815797-PLANOS-Estandares.pdf
254815797-PLANOS-Estandares.pdf
254815797-PLANOS-Estandares.pdf
254815797-PLANOS-Estandares.pdf
254815797-PLANOS-Estandares.pdf
254815797-PLANOS-Estandares.pdf
254815797-PLANOS-Estandares.pdf
254815797-PLANOS-Estandares.pdf
254815797-PLANOS-Estandares.pdf
254815797-PLANOS-Estandares.pdf
254815797-PLANOS-Estandares.pdf
254815797-PLANOS-Estandares.pdf
254815797-PLANOS-Estandares.pdf
254815797-PLANOS-Estandares.pdf
254815797-PLANOS-Estandares.pdf
254815797-PLANOS-Estandares.pdf
254815797-PLANOS-Estandares.pdf
254815797-PLANOS-Estandares.pdf
254815797-PLANOS-Estandares.pdf
254815797-PLANOS-Estandares.pdf
254815797-PLANOS-Estandares.pdf
254815797-PLANOS-Estandares.pdf
254815797-PLANOS-Estandares.pdf
254815797-PLANOS-Estandares.pdf
254815797-PLANOS-Estandares.pdf
254815797-PLANOS-Estandares.pdf
254815797-PLANOS-Estandares.pdf
254815797-PLANOS-Estandares.pdf
254815797-PLANOS-Estandares.pdf
254815797-PLANOS-Estandares.pdf
254815797-PLANOS-Estandares.pdf
254815797-PLANOS-Estandares.pdf
254815797-PLANOS-Estandares.pdf
254815797-PLANOS-Estandares.pdf
254815797-PLANOS-Estandares.pdf
254815797-PLANOS-Estandares.pdf
254815797-PLANOS-Estandares.pdf
254815797-PLANOS-Estandares.pdf
254815797-PLANOS-Estandares.pdf
254815797-PLANOS-Estandares.pdf
254815797-PLANOS-Estandares.pdf
254815797-PLANOS-Estandares.pdf
254815797-PLANOS-Estandares.pdf

254815797-PLANOS-Estandares.pdf

  • 1.
    D 4 F B A 3 2 1 5 68 E 7 C REV. APPROVED CHK. DES. REV. DATE REVISION DESCRIPTION CLIENT LEAD ENGINEER SCALE DRAWING NUMBER CHECK DESIGN CHECK DRAWING DESIGNED BY DRAWN BY APPROVAL DATE APPROVAL DATE APPROVED CHK. DES. REV. DATE REVISION DESCRIPTION REFERENCE DRAWING No. 1:100 0 1:200 5m 10m 0 5m 10m 15m 20m 1:500 10m 0 20m 30m 40m 50m 1:1000 0 100m 50m 1:20 0 0.5m 1m 1.5m 2m 0 1:25 0.5m 1m 1.5m 1:33 1/3 2.5m 2m 0 1m 2m 3m 0 1:50 1m 2m 3m 4m 5m CAD FILE NAME: P:0CAD000SPEM** MODEL UPDATED: DWG. FILE UPDATED: MANUAL CHANGES MADE: YES NO YES NO YES NO PROJECT MANAGER ENGINEERING MANAGER AREA PROJECT ENGINEER REFERENCE DRAWINGS SAFETY SHARE: APPROVAL DATE CONTRACT NO. SAFETY SHARE : BA6CVA1.IGR NOTICE: THIS DRAWING HAS NOT BEEN PUBLISHED AND IS THE SOLE PROPERTY OF FLUOR AND IS LENT TO THE BORROWER FOR THEIR CONFIDENTIAL USE ONLY, AND IN CONSIDERATION OF THE LOAN OF THIS DRAWING, THE BORROWER PROMISES AND AGREES TO RETURN IT UPON REQUEST AND AGREES THAT IT WILL NOT BE REPRODUCED, COPIED LENT OR OTHERWISE DISPOSED OF DIRECTLY OR INDIRECTLY, NOR USED FOR ANY OTHER PURPOSE OTHER THAN WHICH IT IS FURNISHED. NONE Apr 2011 240K-C2- MAIN PROCESS FLOW SECONDARY PROCESS FLOW ELECTRICAL TRACING FLEXIBLE HOSE ELECTRICAL SIGNAL SOFTWARE SIGNAL PROCESS CONNECT LINE ELECTROMAGNETIC OR SONIC SIGNAL PNEUMATIC SIGNAL HYDRAULIC CAPILLARY TELEMETRY SIGNAL BUS COMMUNICATION VENDOR PACKAGE FUTURE EXISTING C1A C1B C1C C1D C1F C1G C1H C1K C1L C1M C2A C2B C2C C2D C2E C2G C2H C4A G1A H0A H0B H0C H0D H0E H0F H0H H0K H0L H0M H0N H1A P0A R1A R1B S1A S1B S4A S7A TXU TXH - - - - - - - - - - - - - - - - - - - - - - - - - - - - - - - - - - - - - - - - CARBON STEEL CARBON STEEL CARBON STEEL CARBON STEEL CARBON STEEL CARBON STEEL CARBON STEEL CARBON STEEL CARBON STEEL CARBON STEEL CARBON STEEL CARBON STEEL CARBON STEEL CARBON STEEL CARBON STEEL CARBON STEEL CARBON STEEL CARBON STEEL GALVANIZED STEEL HDPE (SDR 7/DI FTG) HDPE (SDR 9/SS FTG) HDPE (SDR 11/DI FTG) HDPE (SDR 15/DI FTG) HDPE (SDR 21/DI FTG) HDPE (FM 200/DI FTG) HDPE (SDR 15.5) HDPE (SDR 17) HDPE (SDR 21) HDPE (SDR 26) HDPE (SDR 32) 20 MM HDPE LINED CS PVC 6 MM RUBBER LINED CS 13 MM RUBBER LINED CS 304L STAINLESS STEEL 304L STAINLESS STEEL 304L STAINLESS STEEL 304 STAINLESS STEEL CS-12MM URETHANE LINED CS-15MM HDPE LINED 1034 KPAG @ 82 DEG C 1000 KPAG @ 60 DEG C 1725 KPAG @ 38 DEG C 1965 KPAG @ 38 DEG C 1200 KPAG @ 38 DEG C 1965 KPAG @ 38 DEG C 1380 KPAG @ 38 DEG C 1034 KPAG @ 38 DEG C 1034 KPAG @ 38 DEG C 1900 KPAG @ 38 DEG C 5100 KPAG @ 38 DEG C 3450 KPAG @ 38 DEG C 4480 KPAG @ 38 DEG C 3450 KPAG @ 38 DEG C 4480 KPAG @ 38 DEG C 5100 KPAG @ 38 DEG C 3680 KPAG @ 345 DEG C 5600 KPAG @ 100 DEG C 1034 KPAG @ 82 DEG C 1760 KPAG @ 23 DEG C 1380 KPAG @ 23 DEG C 1035 KPAG @ 23 DEG C 760 KPAG @ 23 DEG C 550 KPAG @ 23 DEG C 1380 KPAG @ 23 DEG C 550 KPAG @ 23 DEG C 450 KPAG @ 23 DEG C 345 KPAG @ 23 DEG C 275 KPAG @ 23 DEG C 100 KPAG @ 49 DEG C 1034 KPAG @ 38 DEG C 100 KPAG @ 60 DEG C 690 KPAG @ 50 DEG C 690 KPAG @ 50 DEG C 1035 KPAG @ 93 DEG C 1035 KPAG @ 100 DEG C 9930 KPAG @ 38 DEG C 34475 KPAG @ 100 DEG C TEMP CODE - SPEC TBD TEMP CODE - SPEC TBD NORMALLY OPEN CLOSED GATE VALVE BALL/ROTARY VALVE GLOBE VALVE PLUG VALVE NEEDLE VALVE KNIFE GATE VALVE DIAPHRAGM VALVE BUTTERFLY VALVE PINCH VALVE AUTOMATIC RECIRCULATION VALVE CHECK VALVE ANGLE VALVE 3 - WAY VALVE 4 - WAY VALVE PRESSURE RELIEF VALVE VACUUM RELIEF VALVE PRESSURE/VACUUM RELIEF VALVE LINE SYMBOLS VALVE SYMBOLS PIPE MATERIAL CLASSIFICATIONS SERVICE CODE SLURRY SLC SL REAGENTS RE RL RQ RS RF RC OIL/FUEL & LUBRICATION OH OLL OLH OT SEWERS & DRAINS DR DRL SW SS UTILITY SERVICE - AIR / GAS AA AI AP AHP ALP N2G PG UTILITY SERVICE - WATER WF WD WR WG UTILITY SERVICE - FIRE PROTECTION FW FP SERVICE SLURRY - COARSE SLURRY - FINE GENERAL REAGENTS MILK OF LIME QUICK LIME (DRY) SODIUM HYDROSULPHIDE FROTHER COLLECTOR HYDRAULIC OIL LUBE OIL LOW PRESSURE LUBE OIL HIGH PRESSURE THERMAL FLUID DRAINS AND VENTS LAB DRAINS AND VENTS SEWER GREY WATER SEWER SANITARY ATMOSPHERIC AIR INSTRUMENT AIR PLANT AIR HIGH PRESSURE AIR LOW PRESSURE AIR NITROGEN PROCESS GAS FRESH WATER DOMESTIC WATER RECLAIM / PROCESS WATER GLAND SEAL WATER FIRE PROTECTION WATER FIRE PROTECTION GAS FLUID SERVICE CODES PIPE LINE DESIGNATION C2 - 3110 - SLC - 1234 - R1A - 24" - N INSULATION PURPOSE: (H) - HEAT CONSERVATION (P) - SAFETY (PERSONNEL PROTECTION) (ET)- ELECTRICALLY TRACED & INSULATED (N) - NONE PIPE SIZE PIPE MATERIAL CLASS PIPE SEQUENCE NUMBER FLUID CODE AREA (UNIT) CODE PROJECT AREA CODES AREA CODE AREA TITLE 3100 3200 3300 3400 3500 3600 3700 3800 3900 4000 5000 5100 5200 5300 5400 5500 5600 5700 5800 6000 PRIMARY CRUSHING & COARSE ORE HANDLING SECONDARY AND TERTIARY CRUSHING GRINDING COPPER FLOTATION MOLY PLANT CONCENTRATE DEWATERING AND LOADOUT TAILING THICKENING TAILING HANDLING & RECLAIM WATER PROCESS UTILITIES & REAGENTS TAILING IMPOUNDMENT & SEEPAGE CTRL UTILITIES & ANCILLARIES FRESH WATER SYSTEM ELECTRICAL POWER SYSTEM FIRE PROTECTION SYSTEM POTABLE WATER SYSTEM SEWAGE SYSTEMS COMMUNICATION SYSTEMS EX. ANCHILLARY FACILITIES CONCENTRATOR ANCILLARY FACILITIES OFFSITE FACILITIES FLUJO PRINCIPAL DE PROCESO FLUJO SECUNDARIO DE PROCESO TRACING ELECTRICO MANGUERA FLEXIBLE SENAL ELECTRICA SENAL DE SOFTWARE LINEA DE CONEXION DE PROCESO SENAL ELECTROMAGNETICA O DE SONIDO SENAL NEUMATICA HIDRAULICA CAPILAR SENAL TELEMETRICA DISPOSITVO DE RED SKID O CONJUNTO POR VENDEDOR FUTURO EXISTENTE C1A C1B C1C C1D C1F C1G C1H C1K C1L C1M C2A C2B C2C C2D C2E C2G C2H C4A G1A H0A H0B H0C H0D H0E H0F H0H H0K H0L H0M H0N H1A P0A R1A R1B S1A S1B S4A S7A TXU TXH - - - - - - - - - - - - - - - - - - - - - - - - - - - - - - - - - - - - - ACERO AL CARBONO ACERO AL CARBONO ACERO AL CARBONO ACERO AL CARBONO ACERO AL CARBONO ACERO AL CARBONO ACERO AL CARBONO ACERO AL CARBONO ACERO AL CARBONO ACERO AL CARBONO ACERO AL CARBONO ACERO AL CARBONO ACERO AL CARBONO ACERO AL CARBONO ACERO AL CARBONO ACERO AL CARBONO ACERO AL CARBONO ACERO AL CARBONO ACERO GALVANIZADO PAD (SDR 7/DI FTG) PAD (SDR 9/SS FTG) PAD (SDR 11/DI FTG) PAD (SDR 15/DI FTG) PAD (SDR 21/DI FTG) PAD (FM 200/DI FTG) PAD (SDR 15.5) PAD (SDR 17) PAD (SDR 21) PAD (SDR 26) PAD (SDR 32) REVESTIMIENTO PAD AC 20 MM CLORURO DE POLIVINILO REVESTIMIENTO DE GOMA AC 6 MM REVESTIMIENTO DE GOMA AC 13 MM ACERO INOXIDABLE 304L ACERO INOXIDABLE 304L ACERO INOXIDABLE 304L ACERO INOXIDABLE 304 REVESTIMIENTO DE URETANO AC 12 MM REVESTIMIENTO PAD CS 15 MM 1034 KPAG @ 82 GRADOS CENTIGRADOS 1000 KPAG @ 60 GRADOS CENTIGRADOS 1725 KPAG @ 38 GRADOS CENTIGRADOS 1965 KPAG @ 38 GRADOS CENTIGRADOS 1200 KPAG @ 38 GRADOS CENTIGRADOS 1965 KPAG @ 38 GRADOS CENTIGRADOS 1380 KPAG @ 38 GRADOS CENTIGRADOS 1034 KPAG @ 38 GRADOS CENTIGRADOS 1034 KPAG @ 38 GRADOS CENTIGRADOS 1900 KPAG @ 38 GRADOS CENTIGRADOS 5100 KPAG @ 38 GRADOS CENTIGRADOS 3450 KPAG @ 38 GRADOS CENTIGRADOS 4480 KPAG @ 38 GRADOS CENTIGRADOS 3450 KPAG @ 38 GRADOS CENTIGRADOS 4480 KPAG @ 38 GRADOS CENTIGRADOS 5100 KPAG @ 38 GRADOS CENTIGRADOS 3680 KPAG @ 345 GRADOS CENTIGRADOS 5600 KPAG @ 100 GRADOS CENTIGRADOS 1034 KPAG @ 82 GRADOS CENTIGRADOS 1760 KPAG @ 23 GRADOS CENTIGRADOS 1380 KPAG @ 23 GRADOS CENTIGRADOS 1035 KPAG @ 23 GRADOS CENTIGRADOS 760 KPAG @ 23 GRADOS CENTIGRADOS 550 KPAG @ 23 GRADOS CENTIGRADOS 1380 KPAG @ 23 GRADOS CENTIGRADOS 550 KPAG @ 23 GRADOS CENTIGRADOS 450 KPAG @ 23 GRADOS CENTIGRADOS 345 KPAG @ 23 GRADOS CENTIGRADOS 275 KPAG @ 23 GRADOS CENTIGRADOS 100 KPAG @ 49 GRADOS CENTIGRADOS 1034 KPAG @ 38 GRADOS CENTIGRADOS 100 KPAG @ 60 GRADOS CENTIGRADOS 690 KPAG @ 50 GRADOS CENTIGRADOS 690 KPAG @ 50 GRADOS CENTIGRADOS 1035 KPAG @ 93 GRADOS CENTIGRADOS 1035 KPAG @ 100 GRADOS CENTIGRADOS 9930 KPAG @ 38 GRADOS CENTIGRADOS 34475 KPAG @ 100 GRADOS CENTIGRADOS CODIGO DE TEMPERATURA - A SER DETERMINADO CODIGO DE TEMPERATURA - A SER DETERMINADO NORMALMENTE ABIERTA CERRADA VALVULA DE COMPUERTA VALVULA DE BOLA VALVULA DE GLOBO VALVULA DE CONO VALVULA DE AGUJA VALVULA DE CUCHILLO VALVULA DE DIAFRAGMA VALVULA DE MARIPOSA VALVULA DE PINCH VALVULA DE RECIRCULACION AUTOMATICA VALVULA DE RETENCION VALVULA DE ANGULO VALVULA DE 3-VIAS VALVULA DE 4-VIAS VALVULA ALIVIO DE PRESION VALVULA ALIVIO DE VACIO VALVULA ALIVIO DE PRESION/VACIO SIMBOLOS DE LINEAS SIMBOLOS PARA VALVULAS CLASIFICACION DE MATERIALS DE TUBERIA CODIGO DE SERVICIO PULPA SLC SL REACTIVOS RE RL RQ RS RF RC COMBUSTIBLES Y LUBRICANTE OH OLL OLH OT RESIDUALES Y DRENAJES DR DRL SW SS SERVICIOS GENERALES - AIRE/GAS AA AI AP AHP ALP N2G PG SERVICIOS GENERALES - AGUA WF WD WR WG SERVICIOS GENERALES - PROTECCION CONTRA INCENDIOS FW FP SERVICIO PULPA FRESCA PULPA FINA REACTIVOS EN GENERAL LECHADA DE CAL CAL (SECA) HYDROSULFURO DE SODIO ESPUMANTE COLECTOR ACEITE HYDRAULICO ACEITE DE LUBRICACION BAJA PRESION ACEITE DE LUBRICACION ALTA PRESION FLUIDO TERMICO DRENAJES Y VENTEOS DRENAJES Y VENTEOS DEL LABORATORIO RESIDUOS DE AGUAS NEGRAS RESIDUOS DE AGUAS SANITARIAS AIRE ATMOSFERICO AIRE PARA INSTRUMENTOS AIRE DE PLANTA AIRE DE ALTA PRESION AIRE DE BAJA PRESION NITROGENO GAS DE PROCESO AGUA FRESCA AGUA DE USO DOMESTICO AGUA DE PROCESOS / RECUPERACION AGUA DE SELLOS PRENSAESTOPAS AGUA PARA PROTECCION DE INCENDIOS GAS PARA PROTECCION DE INCENDIOS CODIGOS SERVICIOS DE TUBERIAS DESIGNACION LINEA DE TUBERIAS C2 - 3110 - SLC - 1234 - R1A - 24" - N TIPO DE AISLACION: (H) - CONSERVACION DE CALOR (P) - SEGURIDAD (PROTECCION DE PERSONAL) (N) - NINGUNA AISLACION TAMANO TUBERIA (EN PULGADAS) CLASIFICACION MATERIAL DE TUBERIA NUMERO CORRELACION DE TUBERIA CODIGO DE SERVICIO CODIGO DE AREA CODIGOS AREA DE PROYECTOS CODIGOS AREA TITULO AREA 3100 3200 3300 3400 3500 3600 3700 3800 3900 4000 5000 5100 5200 5300 5400 5500 5600 5700 5800 6000 CHANCADO PRIMARIO Y MANEJO DE MINERAL GRUESO CHANCADO SECUNDARIO Y TERCIARIO MOLIENDA FLOTACION DE COBRE PLANTA DE MOLIBDENO FILTRADO Y DESPACHO DE CONCENTRADO MANEJO DE RELAVES Y RECUPERACION DE AGUA ESPESAMIENTO DE RELAVES SERVICIOS DE PROCESOS Y REATIVOS REPRESAMIENTO DE RELAVES Y CONTROL DE INFILTRACION SERVICIOS Y AUXILIARES SISTEMA DE AGUA FRESCA SISTEMA DE ALIMENTACION ELECTRICA SISTEMA DE PROTECCION DE INCENDIOS SISTEMA DE AGUA POTABLE SISTEMAS DE RESIDUALES SISTEMAS DE COMUNICACION INSTALACIONES AUXILIARES EXISTENTES INSTALACIONES AUXILIARES DEL CONCENTRADOR INSTALACIONES FUERA DE PLANTA AG KM LT ISSUED FOR CLIENT REVIEW 15-Dec-11 B RP ISSUED FOR COMBINED REVIEW 08-Jul-11 A 12/15/2011 K. MUNDY A.J. GUNSON T. OH L. TAMELIN 12/19/2011 10:24:20 AM WBS: 0000 B PIPING AND INSTRUMENTATION DIAGRAM GENERAL 0000-25J-001 LEGEND AND SYMBOLS 1 OF 3
  • 2.
    T1 T1 T1 T1 T1 T1 T1 T1 T1 T1 T1 T1 T LOAD CELL 0000 T M IMAGE 0000 0000 PP M 0000 PP C C IMAGE RS T T RS DESCRIPCION DESCRIPCION1 DESCRIPCION 2 1055 COMMODITY DESCRIPTION TO/FROM DESCRIPTION1 TO/FROM DESCRIPTION2 1054 SIMBOLOS DE SEPARACION PIPING SEQUENCE NO. BREAK PIPE MATERIAL CLASS SUPPLY RESPONSIBILITY INSULATION REQUIREMENTS CONSTRUCTION STATUS CELDA DE CARGA 12" KG - 1234 NUMERO IDENTIFICACION VALVULA TIPO DE VALVULA TAMANO DE VALVULA (USADA SOLO SI EL TAMANO NO ES OBVIO) TP UNIQUE IDENTIFICATION NUMBER EQUIPMENT TYPE AREA (UNIT) CODE CONCENTRATOR AREA AV - AIRE O ALIVIO DE VACIO DE AIRE BA - BOLA CH - RETENCION DP - DIAFRAGMA BU - MARIPOSA CONEXIONES FUERA DE PLANO C2 - 3110 - CLA - 203 FILTER RUPTURE DISC WEIR QUICK DISCONNECT DOLE VALVE AIR / VACUUM RELEASE VALVE GEARBOX SILENCER STEAM TRAP MOISTURE TRAP FLAME ARRESTER DEMISTER / COALESCING MEDIA GOOSE NECK VENT VESSEL VENT C/W BIRD SCREEN SWING ELBOW IMAGE ANALYSIS CAMERA DRAWING CONTINUITY NUMBER ASSIGNED BY ORIGINATING DRAWING. (LINE CONSISTENCY CHECKING) SIMBOLOS DE BOMBAS VERTICAL TURBINE PUMP SUBMERSIBLE PUMP SPECIALTY ITEMS VALVE DESIGNATION MT PUMP SYMBOLS GENERAL COMPONENTS GA - COMPUERTA KG - CUCHILLO GL - GLOBO NL - AGUJA PL - MACHO PN - PINCH ST EQUIPMENT CODES DESIGNACION DE VALVULAS VALVE SIZE (USED ONLY IF SIZE NOT OBVIOUS) MT 12" KG - 1234 BLOWER/COMPRESSOR ST COMPONENTES GENERALES NUMERO DE EQUIPO CCTV THERMOWELL FLOW ORIFICE (FLANGED) MAGNETIC FLOW METER CORIOLIS FLOW METER THERMAL FLOW METER PITOT FLOW METER (ANNUBAR) POSITIVE DISPL. METER SONIC FLOW METER TURBINE FLOW METER VORTEX FLOW METER VENTURI ROTAMETER (VARIABLE AREA FLOW METER) OTHER IN-LINE DEVICE DART VALVE SP - 3450 - 001 SEQUENCE NUMBER AREA NUMBER FLANGE BLIND FLANGE CAP CONCENTRIC REDUCER ECCENTRIC REDUCER SPECTACLE BLIND HOSE CONNECTION "Y" STRAINER BASKET STRAINER CONE STRAINER DUPLEX STRAINER LUBRICATOR FILTER EXPANSION JOINT REMOVABLE SPOOL PIECE SPRAY NOZZLE TRAP TIE POINT CCTV CAMERA SP - 3450 - 001 NUMERO CONSECUTIVO NUMERO DE AREA C2 - 3110 - CLA - 203 SLOPE SELF DRAIN FILTRO DISCO DE RUPTURA VERTEDERO DESCONEXION RAPIDA VALVULA DOLE (P/PRENSAESTOPAS) VALVULA DE ALIVIO DESCARGA DE AIRE CAJA DE ENGRANAJES SILENCIADOR TRAMPA DE VAPOR TRAMPA DE HUMEDA ARRESTA LLAMAS ANTINEBLINA/ ELEMENTO COAGULACION VENTEO CUELLO DE GANSO VENTEO DE RECIPIENTE C/MALLA PARA PAJAROS CODO GIRATORIO IMAGEN DE ANALISIS DE CAMARA GA - GATE KG - KNIFE GL - GLOBE NL - NEEDLE PL - PLUG PN - PINCH POSITIVE DISPLACEMENT PUMP AV - AIR OR AIR VACUUM RELIEF BA - BALL CH - CHECK DP - DIAPGHRAGM BU - BUTTERFLY TERMOPOZO PLACA ORIFICIO (CON BRIDA) MEDIDOR DE FLUJO MAGNETICO MEDIDOR DE FLUJO TIPO CORIOLIS MEDIDOR DE FLUJO TERMICO MEDIDOR DE FLUJO TIPO PITOT (ANNUBAR) MEDIDOR POR DESPLAZAMIENTO POSITIVO MEDIDOR DE FLUJO PROPAGACION SONICA MEDIDOR DE FLUJO TIPO TURBINA MEDIDOR DE FLUJO TIPO VORTEX VENTURI ROTAMETRO (MEDIDOR DE FLUJO DE AREA VARIABLE) OTRO ELEMENTO EN LINEA VALVULA DE DARDO BREAK SYMBOLS NUMERO DE IDENTIFICACION UNICO TIPO DE EQUIPO CODIGO DE AREA AREA DEL CONCENTRADOR PLANO NUMERO DE CONTINUIDAD NUMERO ASIGNADO POR EL GENERADOR DEL PLANO (PARA CRUZAR PLANOS Y CHEQUEAR CONTINUIDAD) NUMERO PLANO DE CONEXION VALVE IDENTIFICATION NUMBER VALVE TYPE BOMBA VERTICAL DE TURBINA BOMBA CENTRIFUGA CONNECTOR DESCRIPTION (TWO LINES ONLY) W/ EQUIPMENT NUMBER COMMODITY DESCRIPTION CCTV OFF-PAGE CONNECTORS SLOPE VENTILADOR/COMPRESOR BOMBA VERTICAL DE SUMIDERO SELF DRAIN PUNTO DE MUESTREO PUNTO DE PRUEBA (POR EJEMPLO PUNTO DE PRUEBA DE PRESION) BOCINA ALARMA AUDIBLE SELLO DE DIAFRAGMA TUBERIA INCLINADA TUBERIA DE AUTO-DRENAJE INTERRUPTOR VORTEX DUCHA DE SEGURIDAD CON ESTACION PARA LAVADO DE OJOS GRIFO DESCRIPCION CONECTOR (SOLO DOS LINEAS) CON NUMERO DE EQUIPO G BOMBA SUMERGIBLE G ITEMS ESPECIALES COMMODITY DESCRIPTION SAMPLE POINT TEST POINT (EG. PRESSURE TEST POINT) HORN AUDIBLE ALARM DIAPHRAGM SEAL SLOPING PIPE SELF DRAINING PIPE VORTEX BREAKER SAFETY SHOWER / EYE WASH STATION FIRE HYDRANT VERTICAL SUMP PUMP CONNECTING DRAWING NUMBER TP BOMBA DE DESPLAZAMINETO POSITIVO DEFINE LINEAS DE SEPARACION ES DECIR MATERIAL, CLASE, AREA, NRO SECUENCIA DE TUBERIA, ETC. CLASE MATERIAL DE TUBERIAS LIMITE DE RESPONSIBILIDAD DE SUMINISTRO REQUERIMIENTOS DE AISLACION LIMITE DE ESTADO DE CONSTRUCCION CENTRIFUGAL PUMP BRIDA BRIDA CIEGA TAPA REDUCCION CONCENTRICA REDUCCION EXCENTRICA DISCO CIEGO CONEXION DE MANGUERA FILTRO "Y" FILTRO DE CANASTA FILTRO DE CONO FILTRO DOBLE FILTRO DE LUBRICADOR JUNTA DE EXPANSION CARRATEL MOVIBLE BOQUILLA ROCIADORA TRAMPA PUNTO DE ENLACE CAMARA CIRCUITO CERRADO DE TV (CCTV) AG KM LT ISSUED FOR CLIENT REVIEW 15-Dec-11 B RP ISSUED FOR COMBINED REVIEW 08-Jul-11 A 12/15/2011 K. MUNDY A.J.GUNSON T. OH L. TAMELIN 12/19/2011 10:25:25 AM WBS: 0000 B PIPING AND INSTRUMENTATION DIAGRAM GENERAL 0000-25J-002 LEGEND AND SYMBOLS 2 OF 3 D 4 F B A 3 2 1 5 6 8 E 7 C REV. APPROVED CHK. DES. REV. DATE REVISION DESCRIPTION CLIENT LEAD ENGINEER SCALE DRAWING NUMBER CHECK DESIGN CHECK DRAWING DESIGNED BY DRAWN BY APPROVAL DATE APPROVAL DATE APPROVED CHK. DES. REV. DATE REVISION DESCRIPTION REFERENCE DRAWING No. 1:100 0 1:200 5m 10m 0 5m 10m 15m 20m 1:500 10m 0 20m 30m 40m 50m 1:1000 0 100m 50m 1:20 0 0.5m 1m 1.5m 2m 0 1:25 0.5m 1m 1.5m 1:33 1/3 2.5m 2m 0 1m 2m 3m 0 1:50 1m 2m 3m 4m 5m CAD FILE NAME: P:0CAD000SPEM** MODEL UPDATED: DWG. FILE UPDATED: MANUAL CHANGES MADE: YES NO YES NO YES NO PROJECT MANAGER ENGINEERING MANAGER AREA PROJECT ENGINEER REFERENCE DRAWINGS SAFETY SHARE: APPROVAL DATE CONTRACT NO. SAFETY SHARE : BA6CVA1.IGR NOTICE: THIS DRAWING HAS NOT BEEN PUBLISHED AND IS THE SOLE PROPERTY OF FLUOR AND IS LENT TO THE BORROWER FOR THEIR CONFIDENTIAL USE ONLY, AND IN CONSIDERATION OF THE LOAN OF THIS DRAWING, THE BORROWER PROMISES AND AGREES TO RETURN IT UPON REQUEST AND AGREES THAT IT WILL NOT BE REPRODUCED, COPIED LENT OR OTHERWISE DISPOSED OF DIRECTLY OR INDIRECTLY, NOR USED FOR ANY OTHER PURPOSE OTHER THAN WHICH IT IS FURNISHED. NONE Apr 2011 240K-C2- D 4 F B A 3 2 1 5 6 8 E 7 C REV. APPROVED CHK. DES. REV. DATE REVISION DESCRIPTION CLIENT LEAD ENGINEER SCALE DRAWING NUMBER CHECK DESIGN CHECK DRAWING DESIGNED BY DRAWN BY APPROVAL DATE APPROVAL DATE APPROVED CHK. DES. REV. DATE REVISION DESCRIPTION REFERENCE DRAWING No. 1:100 0 1:200 5m 10m 0 5m 10m 15m 20m 1:500 10m 0 20m 30m 40m 50m 1:1000 0 100m 50m 1:20 0 0.5m 1m 1.5m 2m 0 1:25 0.5m 1m 1.5m 1:33 1/3 2.5m 2m 0 1m 2m 3m 0 1:50 1m 2m 3m 4m 5m CAD FILE NAME: P:0CAD000SPEM** MODEL UPDATED: DWG. FILE UPDATED: MANUAL CHANGES MADE: YES NO YES NO YES NO PROJECT MANAGER ENGINEERING MANAGER AREA PROJECT ENGINEER REFERENCE DRAWINGS SAFETY SHARE: APPROVAL DATE CONTRACT NO. SAFETY SHARE : BA6CVA1.IGR NOTICE: THIS DRAWING HAS NOT BEEN PUBLISHED AND IS THE SOLE PROPERTY OF FLUOR AND IS LENT TO THE BORROWER FOR THEIR CONFIDENTIAL USE ONLY, AND IN CONSIDERATION OF THE LOAN OF THIS DRAWING, THE BORROWER PROMISES AND AGREES TO RETURN IT UPON REQUEST AND AGREES THAT IT WILL NOT BE REPRODUCED, COPIED LENT OR OTHERWISE DISPOSED OF DIRECTLY OR INDIRECTLY, NOR USED FOR ANY OTHER PURPOSE OTHER THAN WHICH IT IS FURNISHED. NONE Apr 2011 240K-C2-
  • 3.
    D 4 F B A 3 2 1 5 68 E 7 C REV. APPROVED CHK. DES. REV. DATE REVISION DESCRIPTION CLIENT LEAD ENGINEER SCALE DRAWING NUMBER CHECK DESIGN CHECK DRAWING DESIGNED BY DRAWN BY APPROVAL DATE APPROVAL DATE APPROVED CHK. DES. REV. DATE REVISION DESCRIPTION REFERENCE DRAWING No. 1:100 0 1:200 5m 10m 0 5m 10m 15m 20m 1:500 10m 0 20m 30m 40m 50m 1:1000 0 100m 50m 1:20 0 0.5m 1m 1.5m 2m 0 1:25 0.5m 1m 1.5m 1:33 1/3 2.5m 2m 0 1m 2m 3m 0 1:50 1m 2m 3m 4m 5m CAD FILE NAME: P:0CAD000SPEM** MODEL UPDATED: DWG. FILE UPDATED: MANUAL CHANGES MADE: YES NO YES NO YES NO PROJECT MANAGER ENGINEERING MANAGER AREA PROJECT ENGINEER REFERENCE DRAWINGS SAFETY SHARE: APPROVAL DATE CONTRACT NO. SAFETY SHARE : BA6CVA1.IGR NOTICE: THIS DRAWING HAS NOT BEEN PUBLISHED AND IS THE SOLE PROPERTY OF FLUOR AND IS LENT TO THE BORROWER FOR THEIR CONFIDENTIAL USE ONLY, AND IN CONSIDERATION OF THE LOAN OF THIS DRAWING, THE BORROWER PROMISES AND AGREES TO RETURN IT UPON REQUEST AND AGREES THAT IT WILL NOT BE REPRODUCED, COPIED LENT OR OTHERWISE DISPOSED OF DIRECTLY OR INDIRECTLY, NOR USED FOR ANY OTHER PURPOSE OTHER THAN WHICH IT IS FURNISHED. NONE Apr 2011 240K-C2- / 0000 0000 FIELD MOUNTED INSTRUMENT FRONT OF PANEL INSTRUMENT (OPERATOR ACCESSIBLE) BACK OF PANEL INSTRUMENT (OPERATOR INACCESSIBLE) CONTROL SYSTEM DISPLAY/FUNCTION CONTROL SYSTEM (OPERATOR INACCESSIBLE) PLC OPERATOR ACCESIBLE COMPUTER SYSTEM (ADVANCE CONTROLS) SOFTWARE INTERLOCK HARDWARE INTERLOCK INTERLOCK MODIFIER/FUNCTION AND, OR - LOGIC FUNCTION I - UNDEFINED LOGIC INTERLOCK K - TIMER FUNCTION R - RESET 0000 ALARM/STROBE LIGHT R - RED G - GREEN Y - YELLOW INSTRUMENT AIR SUPPLY PLANT AIR SUPPLY ELECTRIC SUPPLY EMERGENCY POWER SUPPLY ANTENNA COMPUTER (INPUT/OUTPUT) I/O CODE I - CURRENT H - HYDRAULIC E- VOLTAGE F - FREQUENCY P - PNEUMATIC R - RESISTANCE D- DIGITAL A - ANALOG 0000 AI HH H L LL HIGH HIGH LEVEL INDICATION HIGH LEVEL INDICATION LOW LEVEL INDICATION LOW LOW LEVEL INDICATION TO BE USED FOR NON CRITICAL, NON INTERLOCKED, VISUAL ALARM IN CONTROL ROOM NOTES: 1. ALL OPTIONS FOR " PANEL DESIGNATION " ARE AVAILABLE FOR DCS. 2. LOCAL CONTROL STATIONS FOR ALL MOTOR ARE IMPLIED AND THEREFORE NOT SHOWS. 3. " V " INSTRUMENTATION FOR EQUIPMENT SUPPLIED WITH VENDOR PACKAGE. E/H 3 - WAY SOLENOID VALVE 4 - WAY SOLENOID VALVE 4 - WAY DUAL SOLENOID VALVE M S PISTON MOTOR SOLENOID POST INDICATOR VALVE HANDJACK OR HANDWHEELL SELF CONTAINED PRESSURE REGULATOR SELF CONTAINED PRESSURE REGULATOR DIAPHRAGM ELECTRO-HYDRAULIC INSTRUMENTATION SYMBOLS VALVE OPERATOR SYMBOLS CONTROL SYSTEMS ABBREVATIONS L LL L/R L/O/R LHS MAN NC NO OP OP/CL P1 P2 PERM PLS RV RATIO RDY RHS RM RUN RSP RST RTD SEL SL SP ST STA ST/SP T/C UP UP/DN V A/M ACK AFD ASD BP/VS CL CWB DCS DIR DN EF FC FI FL FLT FO F/R F/O/R F/O/S FS FW H HH H/O/A H/O/R H/LO HS HSS I/D J JF/JS JR/JF LO LC - LOW - LOW LOW - LOCAL/REMOTE - LOCAL/OFF/REMOTE - LEFT HAND SIDE - MANUAL - NORMALLY CLOSED - NORMALLY OPEN - OPEN - OPEN CLOSE - PRIORITY 1 - PRIORITY 2 - PERMISSIVE - PROGRAMMABLE LOGIC CONTROLLER - REVERSE - RATIO CONTROL - READY - RIGHT HAND SIDE - REMOTE - RUNNING - REMOTE SET POINT - RESET - RESISTANCE TEMPERATURE DEVICE - SELECTOR SWITCH (UNDEFINED) - SLOW - STOP - START - STATUS - START/STOP - THERMOCOUPLE - UP (RAISE) - UP/DOWN (RAISE/LOWER) - VENDOR SUPPLIED (NOTE 3) - AUTO/MANUAL - ACKNOWLEDGE - ADJUSTABLE FREQUENCY DRIVE - ADJUSTABLE SPEED DRIVE - BYPASS/VARIABLE SPEED - CLOSE - CHAIN WHEEL BABBIT - DISTRIBUTED CONTROL SYSTEM - DIRECTION - DOWN (LOWER) - ELECTRICAL FAULT - FAIL CLOSED - FAIL INDETERMINATE - FAILT LAST - FAULT - FAIL OPEN - FORWARD/REVERSE - FORWARD/OFF/REVERSE - FAST/OFF/SLOW - FAST - FORWARD - HIGH - HIGH HIGH - HAND/OFF/AUTO - HAND/OFF/REMOTE - HIGH/LOW - HAND SWITCH PUSH BUTTON OR SELECTION SWITCH - HAND SAFETY SWITCH EMERGENCY STOP - INCREASE/DECREASE - JOG - JOG FAST/JOG SLOW - JOG REVERSE/JOG FORWARD - LOCKED OPEN - LOCKED CLOSE INSTRUMENT NUMBER IDENTIFICATION 0000 12345 A FSL 0000 FSL 12345 A INSTRUMENT SUFFIX INSTRUMENT LOOP NUMBER LAST 3 DIGITS OF DRAWING NUMBER INSTRUMENT MODIFIER (SEE TABLE BELOW) MEASURED VARIABLE (SEE TABLE BELOW) AREA (UNIT) CODE EACH INSTRUMENT IS IDENTIFIED BY A COMBINATION OF LETTERS AND NUMBERS. THE LETTERS ARE SELECTED FROM THE TABLE BELOW TO CLASSIFY THE INSTRUMENT FUNCTION. THE LETTERS ARE FOLLOWED BY A LOOP NUMBER. THE LOOP NUMBER WILL BE COMMON TO ALL INSTRUMENTS WITHIN THAT LOOP. A LOOP MODIFIER (LETTER) IS ADDED TO DIFFERENTIATE BETWEEN INSTRUMENTS BEARING THE SAME LETTER PREFIX WITHIN ANY GIVEN LOOP. MEASURED OR INITIATING VARIABLE ANALYSIS BURNER, COMBUSTION CONDUCTIVITY DENSITY VOLTAGE FLOW RATE GAUGING (DIMENSIONAL) HAND ACTUATED CURRENT (ELECTRICAL) POWER TIME OR TIME SCHEDULE LEVEL MOISTURE METAL DETECTOR TORQUE PRESSURE OR VACUUM QUANTITY RADIATION SPEED OR FREQUENCY TEMPERATURE MULTIVARIABLE VIBRATION WEIGHT, FORCE UNCLASSIFIED EVENT, STATE OR PRESENCE POSITION, DIMENSION A B C D E F G H I J K L M N O P Q R S T U V W X Y Z MODIFIER - - - DIFFERENTIAL DEVIATION - RATIO - - - SCAN TIME RATE OF CHANGE - MOMENTARY - - - INTEGRATE OR TOTALIZE - SAFETY - - - - - - - READOUT OR PASSIVE FUNCTION ALARM - - - SENSOR OR PRIMARY ELEMENT - GLASS OR VIEWING DEVICE - INDICATOR - - LIGHT - - ORIFICE POINT (TEST) CONNECTION - RECORD - - MULTIFUNCTION - WELL -UNCLASSIFIED - - OUTPUT FUNCTION - - CONTROLLER - - - - - - - CONTROL STATION - - - - - - - SWITCH TRANSMITTER MULTIFUNCTION VALVE, DAMPER, LOUVER - - RELAY, COMPUTE, CONVERT DRIVER, ACTUATOR, FINAL CONTROL ELEMENT MODIFIER - - CLOSE - - - - HIGH - - - LOW MIDDLE, INTERMEDIATE - OPEN - - - - - MULTIFUNCTION - - - - - FIRST LETTER SUCCEEDING LETTERS INSTRUMENT IDENTIFICATION LETTERS / 0000 0000 INSTRUMENTO MONTADO EN TERRENO INSTRUMENTO MONTADO DELANTE DEL GABINETE INSTRUMENTO MONTADO DETRAS DEL GABINETE SISTEMA DE CONTROL VISOR/FUNCION SISTEMA DE CONTROL NO ACCESIBLE POR EL OPERADOR PLC ACCESIBLE POR EL OPERADOR (NOTA 1) SISTEMA COMPUTARIZADO ENCLAVAMIENTO PROGRAMATICO (SOTFWARE) COMPLEJO ENCLAVAMIENTO COMPLEJO ALAMBRADO ENCLAVAMIENTO MODIFICADOR FUNCION Y / O FUNCION LOGICA I - ENCLAVAMIENTO LOGICO SIN DEFINIR K - FUNCION DE TIEMPO R - REAJUSTE 0000 ALARMA/LUZ ESTROBOSCOPICA R - ROJO G - VERDE Y - AMARILLA SUMNISTRO AIRE DE INSTRUMENTACION SUMINISTRO AIRE DE PLANTA SUMINISTRO ELECTRICO SUMINISTRO ENERGIA DE EMERGENCIA ANTENA CONVERTIDOR (ENTRADA/SALIDA) CODIGOS ENTRADA/SALIDA I - CORRIENTE H - HIDRAULICO E- VOLTAJE F - FRECUENCIA P - NEUMATICO R - RESISTENCIA D- DIGITAL A - ANALOGO 0000 AI HH H L LL INDICACION DE NIVEL ALTO ALTO INDICACION DE NIVEL ALTO INDICACION DE NIVEL BAJO INDICACION DE NIVEL BAJO BAJO ALARMA VISULIZADA EN LA SALA DE CONTROL, A SER UTILIZADO EN SISTEMA NO CRITICO, SIN ENCLAVAMIENTO NOTAS: 1. TODAS LAS OPCIONES "DESIGNACION DE PANEL" ESTAN DISPONIBLES EN DCS. 2. ESTACIONES DE CONTROL DE TODOS LOS MOTORES ESTAN IMPLICITAS Y POR ESO NO SON MOSTRADAS. 3. " V " INTRUMENTACION PARA EQUIPOS SUMINISTRADA EN EL PAQUETE DEL VENDEDOR. VALVULA SOLENOIDE DE 3 VIAS VALVULA SOLENOIDE DE 4 VIAS VALVULA SOLENOIDE DE 4 VIAS DOBLE PISTON MOTOR SOLENOIDE VALVULA POST INDICADORA VOLANTE MANUAL REGULADOR DE PRESION INDEPENDIENTE REGULADOR CONTRA PRESION INDEPENDIENTE DIAFRAGMA ELECTRO-HIDRAULICO SIMBOLOS DE INTRUMENTACION SIMBOLOS ACTUADORES DE VALVULAS ABREVIACIONES SISTEMAS DE CONTROL L LL L/R L/O/R LHS MAN NC NO OP OP/CL P1 P2 PERM PLS RV RATIO RDY RHS RM RUN RSP RST RTD SEL SL SP ST STA ST/SP T/C UP UP/DN V A/M ACK AFD ASD BP/VS CL CWB DCS DIR DN EF FC FI FL FLT FO F/R F/O/R F/O/S FS FW H HH H/O/A H/O/R H/LO HS HSS I/D J JF/JS JR/JF LO LC - BAJO - BAJO BAJO - LOCAL/REMOTO - LOCAL/DETENIDO/REMOTO - LADO A MANO IZQUIERDA - MANUAL - NORMALMENTE CERRADA - NORMALMENTE ABIERTA - ABIERTO - ABIERTO CERRADO - PRIORIDAD 1 - PRIORIDAD 2 - AUTORIZACION - CONTROLADOR LOGICO PROGRAMABLE - REVERSA - CONTROL DE RAZON - PREPARADO - LADO A MANO DERECHA - REMOTO - OPERANDO - PUNTO DE CONTRO REMOTO - REAJUSTAR - ELEMENTO DE TEMPERATURA RESISTIVO - INTERRUPTOR DE SELECCION (INDEFINIDO) - LENTO - PARAR - PARTIR - CONDICION - PARTIR/PARAR - TERMOCUPLA - ARRIBA (LEVANTAR) - ARRIBA/ABAJO (SUBIR/BAJAR) - SUMNISTRADO POR EL VENDEDOR (NOTA 3) - AUTO/MANUAL - TOMAR CONOCIMIENTO - CONTROLADOR DE FRECUENCIA VARIABLE - CONTROLADOR VELOCIDAD VARIABLE - DERIVACIO/VELOCIDAD VARIABLE - CERRADO - RUEDA ECADENADA ANTIFRICCION - SISTEMA CONTROL DISTRIBUIDO (SCD) - DIRECCION - ABAJO (INFERIOR) - FALLA ELECTRICA - CERRADO EN FALLA - INDETERMINADO EN FALLA - ULTIMA POSICION EN FALLA - FALLA - ABIERTO EN FALLA - AVANZA/REVERSA - AVANZA/DETENCION/REVERSA - RAPIDO/DETENIDO/LENTO - RAPIDO - ADELANTE - ALTO - ALTO ALTO - MANUAL/DETENIDO/AUTOMATICO - MANUAL/DETENIDO/REMOTO - ALTO/BAJO - INTERRUPTOR MANUAL O INTERRUPTOR DE SELECCION - INTERRUPTOR MANUAL DE SEGURIDAD /PARADA DE EMERGENCIA - AUMENTA/DISMINUYE - AVANCE - AVANCE RAPIDO/AVANCE LENTO - AVANCE ATRAS/AVANCE ADELANTE - TRABAJO POSICION ABIERTA - TRABAJO POSICION CERRADA IDENTIFICACION NUMERO DEL INSTRUMENTO 0000 12345 A FSL 0000 FSL 12345 A SUFIJO DEL INSTRUMENTO NUMERO DEL LAZO DEL INSTRUMENTO ULTIMOS 3 DIGITOS DEL NUMERO DEL DIBUJO VARIACION DEL INSTRUMENTO (VER TABLA ABAJO) VARIABLE MEDIDA (VER TABLA ABAJO) CODIGO DEL AREA (UNIDAD) CADA INSTRUMENTO ESTA IDENTIFICADO POR UNA COMBINACION DE LETRAS Y NUMEROS. LAS LETRAS SON SELECCIONADAS DESDE LA TABLA PRESENTADA MAS ABAJO QUE CLASIFICA LA FUNCION DE LOS INSTRUMENTOS. LAS LETRAS ESTAN SEGUIDAS POR UN NUMERO DE LAZO. LOS NUMEROS DE LAZO SERAN COMUN PARA TODOS LOS INTRUMENTOS PERTENECIENTES AL MISMO LAZO DE NUMERACION. UN MODIFCADOR DE ESTE LAZO (LETRA) ES AGREGADO PARA DIFERENCIAR ENTRE INSTRUMENTOS QUE SOPORTAN LA MISMA LETRA COMO PREFIJO PARA CUALQUIER LAZO DADO. VARIABLE MEDIDA O VARIABLE INICIADORA ANALISIS QUEMADOR, COMBUSTION CONDUCTIVIDAD DENSIDAD VOLTAJE FLUJO (VOLUMETRICO) ESCALA (DIMENSIONAL) MANO CORRIENTE (ELECTRICA) ENERGIA TIEMPO/PROGRAMA DE TIEMPO NIVEL HUMEDAD DETECTOR DE METAL TORQUE PRESION O VACIO CANTIDAD RADIACION VELOCIDAD O FRECUENCIA TEMPERATURA MULTIVARIABLE VIBRACION PESO, FUERZA SIN CLASIFICAR EVENTO, ESTADO O PRESENCIA POSICION, DIMENSION A B C D E F G H I J K L M N O P Q R S T U V W X Y Z VARIACION - - - DIFERENCIAL - RAZON - - - ANALISIS TIEM. DE RAZON DE CAMBIO - MOMENTARIO - - - INTEGRADO O TOTALIZADOR - SEGURIDAD - - - - - - - LECTURA O FUNCION PASIVA ALARMA - - - SENSOR O ELEMENTO PRIMARIO - VIDRIO O ELEMENTO VISOR - INDICADOR - - LUZ - - ORIFICIO PUNTO (PRUEBA DE CONEXION) - REGISTRO - - MULTIFUNCION - POZO - - - FUNCION DE SALIDA - - CONTROL - - - - - - - ESTACION DE CONTROL - - - - - - - INTERRUPTOR TRANSMISOR MULTIFUNCION VALVULA,REGISTRO,PERSIA. - - RELE,CALCULAR,CONVERTIR CONDUCIR, ACTUAR, ELEM. FINAL DE CONTROL VARIACION - - CERRADO - - - - ALTO - - - BAJO AL MEDIO,INTERMEDIARIO - ABIERTO - - - - - MULTIFUNCION - - - - - PRIMERA LETRA LETRAS SIGUIENTES LETRAS DE IDENTIFICACION DE INSTRUMENTOS S E/H M S S S S S ALARM PRIORITY P1 - HIGH, EQUIPMENT STOP P2 - MEDIUM, REQUIRED ACTION BY OPERATOR P3 - LOW, WARNING PRIORIDAD DE LA ALARMA P1 - ALTA, EQUIPO DETENIDO P2 - MEDIA, ACCION REQUERIDA POR EL OPERADOR P3 - BAJA, ADVERTENCIA 0000 0000 AG KM LT ISSUED FOR CLIENT REVIEW 15-Dec-11 B RP ISSUED FOR COMBINED REVIEW 08-Jul-11 A 12/15/2011 K. MUNDY A.J.GUNSON T. OH L. TAMELIN 12/15/2011 3:26:20 PM WBS: 0000 B PIPING AND INSTRUMENTATION DIAGRAM GENERAL 0000-25J-003 LEGEND AND SYMBOLS 3 OF 3 AI ES ES AI S H PISTON WITH SPRING RETURN HYDRAULIC H PISTON CON RESORTE DE RETORNO HIDRAULICO
  • 4.
    D 4 F B A 3 2 1 5 68 E 7 C REV. APPROVED CHK. DES. REV. DATE REVISION DESCRIPTION CLIENT LEAD ENGINEER SCALE DRAWING NUMBER CHECK DESIGN CHECK DRAWING DESIGNED BY DRAWN BY APPROVAL DATE APPROVAL DATE APPROVED CHK. DES. REV. DATE REVISION DESCRIPTION REFERENCE DRAWING No. 1:100 0 1:200 5m 10m 0 5m 10m 15m 20m 1:500 10m 0 20m 30m 40m 50m 1:1000 0 100m 50m 1:20 0 0.5m 1m 1.5m 2m 0 1:25 0.5m 1m 1.5m 1:33 1/3 2.5m 2m 0 1m 2m 3m 0 1:50 1m 2m 3m 4m 5m CAD FILE NAME: P:0CAD000SPEM** MODEL UPDATED: DWG. FILE UPDATED: MANUAL CHANGES MADE: YES NO YES NO YES NO PROJECT MANAGER ENGINEERING MANAGER AREA PROJECT ENGINEER REFERENCE DRAWINGS SAFETY SHARE: APPROVAL DATE CONTRACT NO. SAFETY SHARE : BA6CVA1.IGR NOTICE: THIS DRAWING HAS NOT BEEN PUBLISHED AND IS THE SOLE PROPERTY OF FLUOR AND IS LENT TO THE BORROWER FOR THEIR CONFIDENTIAL USE ONLY, AND IN CONSIDERATION OF THE LOAN OF THIS DRAWING, THE BORROWER PROMISES AND AGREES TO RETURN IT UPON REQUEST AND AGREES THAT IT WILL NOT BE REPRODUCED, COPIED LENT OR OTHERWISE DISPOSED OF DIRECTLY OR INDIRECTLY, NOR USED FOR ANY OTHER PURPOSE OTHER THAN WHICH IT IS FURNISHED. NONE Apr 2011 240K-C2- P&ID ACTUAL TYPICAL # 1 - STANDARD ELECTRIC MOTOR (FVNR) - T1 EQUIPMENT MOTOR LEGEND 0000 II 0000 XA 0000 XL 0000 XS 0000 HS FAULT RDY/RUN SP ST/SP L/R J/SP 0000 II 0000 XA 0000 HS FAULT J/SP TYPICAL # 2 - REVERSING OR TWO SPEED DRIVE FVR (FV2S) - T2 P&ID 0000 II 0000 XA 0000 XL 0000 XS 0000 HS FAULT RDY/RUN SP FWD REV L/R ST/SP (J) JF/JR SP 0000 II 0000 XA 0000 HS FAULT ACTUAL (J) JF/JR SP NOTE: 1. BRACKETED DESCRIPTIONS ARE REPRESENTATIVE OF 2-SPEED FUNCTION AND REPLACE THE DIRECTIONAL REPRESENTATION. TYPICAL # 3 - ADJUSTABLE FREQUENCY DRIVE (AFD) - T3 ACTUAL P&ID 0000 II 0000 XA 0000 XL 0000 XS 0000 HS FAULT RDY/RUN SP ST/SP L/R J/SP AFD 0000 II 0000 XA 0000 HS FAULT J/SP AFD TYPICAL # 4 - CONVEYOR STANDARD (FVNR CONV) - T4 0000 II 0000 HSA 0000 HSA 0000 HS FAULT RDY/RUN SP ST/SP L/R J/SP 0000 XA 0000 XL 0000 XS A TO N A TO N 0000 XA + A TO N 0000 II 0000 HS J/SP 0000 XA 0000 XA + A TO N SAFETY INTERLOCKS NOTE 2 FVNR CONV SAFETY INTERLOCKS FAULT NOTES: 1. MISALIGNMENT SWITCHES, BELT RIP SWITCHES, PLUGGED CHUTE SWITCHES WILL BE WIRED INTO THE DCS AND WILL TRIP THE CONVEYOR VIA THE DCS OUTPUT STOP. 2. PULL CORDS ON THE OPPOSITE SIDES OF THE CONVEYOR WILL HAVE SEPARATE TAG NUMBER MULTIPLE SWITCHES ON SAME SIDE OF THE CONVEYOR WILL BE IDENTIFIED BY A, B, C, ETC. 3.MULTIPLE START-UP WARNING HORNS WILL BE IDENTIFIED AS REQUIRED A,B,C,ETC. TYPICAL # 6 - VARIABLE SPEED HYDRAULIC DRIVE - T6 ACTUAL P&ID P&ID ACTUAL 0000 PDAH 0000 TI 0000 TAHH 0000 TAH 0000 LI 0000 XA + 0000 XL 0000 HS 0000 XA 0000 HS J/SP RDY/RUN SP ST/SP L/R DIR HYDRAULIC DRIVE SEE VENDOR DRAWING XXXXXXXXXX SAFETY INTERLOCKS 0000 PDI 0000 TI 0000 LI 0000 XA 0000 HS FAULT HYDRAULIC DRIVE SEE VENDOR DRAWING XXXXXXXXXX J/SP HH H L, P2 TYPICAL # 5 - ADJUSTABLE FREQUENCY DRIVE-CONVEYOR (AFD CONV) - T5 P&ID ACTUAL 0000 II 0000 HSA 0000 HSA 0000 HS FAULT J/SP 0000 XA 0000 XL 0000 HS A TO N 0000 XA + A TO ? SAFETY INTERLOCKS A TO N RDY/RUN SP ST/SP L/R 0000 TI C WDG 0000 TI 0000 TI B A WDG WDG 0000 G TE 0000 H TE 0000 G TI 0000 H TI AFD BRG REAR 0000 II 0000 XA 0000 XA + A TO ? SAFETY INTERLOCKS FAULT 0000 G TE 0000 H TE 0000 G TI 0000 H TI AFD BRG FRONT H, P2 HH, P1 BRG REAR H, P2 HH, P1 MISCELLANEOUS LEGEND TYPICAL # 8 - SUMP PUMP CONTROL - T8 P&ID ACTUAL 0000 LE 0000 LIT 0000 LI 0000 HS 0000 II 0000 XA J/SP H, P2 HH, P1 L,P2 FAULT 0000 LE 0000 LIT 0000 HS 0000 II 0000 XS 0000 XL 0000 XA J/SP H/A L/R ST/SP RDY/RUN SP 0000 LI TYPICAL # 9 - GLAND SEAL WATER PUMP CONTROL - T9 T9 2"x1-1/4" 0000 PI 0000 FI 0000 PIT 0000 FIT M L, P2 LL, P1 L, P2 0000 FE + 3"x2" 3"x2" MODIFIERS UNIVERSAL MOTOR MODIFIER # 1 - TYPICAL MULTILIN MOTOR PROTECTION - U1 ACTUAL 0000 II 0000 UA 0000 JI 0000 HS TRIP TYPE J/SP 0000 XA 0000 XL 0000 HSLA RDY/RUN SP ST/SP L/R 0000 TI WDG 0000 TI 0000 TI A WDG WDG 0000 G TE 0000 H TE 0000 G TI 0000 H TI 0000 US 0000 XA MPR TRIP TYPE P&ID 0000 JI 0000 HS J/SP 0000 II 0000 XA FAULT 0000 G TE 0000 H TE 0000 G TI 0000 H TI BRG FRONT H, P2 HH, P1 BRG REAR H, P2 HH, P1 UNIVERSAL MOTOR MODIFIER # 2 - U2 0000 TI 0000 TI 0000 TI 0000 TAH 0000 XA TRIP TYPE 0000 TI 0000 XA HH, P1 H, P2 WDG A TO C ACTUAL P&ID 0000 TAHH WDG WDG WDG A B C TRIP TYPE UNIVERSAL MOTOR MODIFIER # 3 - U3 ACTUAL P&ID 0000 G TI 0000 H TI 0000 G TE 0000 H TE 0000 G TI 0000 H TI 0000 G TE 0000 H TE BRG REAR H, P2 HH, P1 BRG FRONT H, P2 HH, P1 T1 T1 U3 U3 U1 T2 T2 T3 T3 T4 T4 T5 T5 T8 T8 U1 U2 U2 AG KM LT ISSUED FOR CLIENT REVIEW 15-Dec-11 B RP ISSUED FOR COMBINED REVIEW 08-Jul-11 A 12/15/2011 K. MUNDY A.J. GUNSON T. OH L. TAMELIN 12/15/2011 2:36:49 PM WBS: 0000 B PIPING AND INSTRUMENTATION DIAGRAM GENERAL 0000-25J-004 MOTOR AND VALVE CONTROL SCHEME 1 OF 2 ES FAULT 0000 HS J/SP BRG REAR BRG FRONT BRG FRONT BRG FRONT BRG REAR B C BRG REAR BRG FRONT NOTES: 1. P1 CAUSES A TRIP CONDITION. 2. P2 REQUIRES OPERATOR ACTION. 3. P1, P2 CONDITIONS IN GENERAL MOTOR SCHEMES ARE FOR REFERENCE. PROCESS DISCIPLINE TO UPDATE ACCORDINGLY. BRG REAR BRG FRONT A TO N H, P2 HH, P1 L,P2 H, P2 HH, P1 H, P2 HH, P1 BRG FRONT H, P2 HH, P1 BRG REAR H, P2 HH, P1 BRG FRONT H, P2 HH, P1 BRG REAR H, P2 HH, P1
  • 5.
    D 4 F B A 3 2 1 5 68 E 7 C REV. APPROVED CHK. DES. REV. DATE REVISION DESCRIPTION CLIENT LEAD ENGINEER SCALE DRAWING NUMBER CHECK DESIGN CHECK DRAWING DESIGNED BY DRAWN BY APPROVAL DATE APPROVAL DATE APPROVED CHK. DES. REV. DATE REVISION DESCRIPTION REFERENCE DRAWING No. 1:100 0 1:200 5m 10m 0 5m 10m 15m 20m 1:500 10m 0 20m 30m 40m 50m 1:1000 0 100m 50m 1:20 0 0.5m 1m 1.5m 2m 0 1:25 0.5m 1m 1.5m 1:33 1/3 2.5m 2m 0 1m 2m 3m 0 1:50 1m 2m 3m 4m 5m CAD FILE NAME: P:0CAD000SPEM** MODEL UPDATED: DWG. FILE UPDATED: MANUAL CHANGES MADE: YES NO YES NO YES NO PROJECT MANAGER ENGINEERING MANAGER AREA PROJECT ENGINEER REFERENCE DRAWINGS SAFETY SHARE: APPROVAL DATE CONTRACT NO. SAFETY SHARE : BA6CVA1.IGR NOTICE: THIS DRAWING HAS NOT BEEN PUBLISHED AND IS THE SOLE PROPERTY OF FLUOR AND IS LENT TO THE BORROWER FOR THEIR CONFIDENTIAL USE ONLY, AND IN CONSIDERATION OF THE LOAN OF THIS DRAWING, THE BORROWER PROMISES AND AGREES TO RETURN IT UPON REQUEST AND AGREES THAT IT WILL NOT BE REPRODUCED, COPIED LENT OR OTHERWISE DISPOSED OF DIRECTLY OR INDIRECTLY, NOR USED FOR ANY OTHER PURPOSE OTHER THAN WHICH IT IS FURNISHED. NONE Apr 2011 240K-C2- ACTUAL P&ID TYPICAL # 7 - ON/OFF VALVE DOUBLE ACTING (DUAL CONTROL) - V1 AUTOMATED VALVE LEGEND 0000 XV + VENT S S 0000 ZSO 0000 ZSC 0000 XS 0000 XA 0000 ZIC 0000 ZIO V1 TYPICAL # 10 - ON/OFF MOTORIZED VALVE - V3 M M 0000 XV + 0000 XV + 0000 HY 0000 B HS 0000 ZS 0000 ZSC 0000 ZSO OP/CL MISMATCH VALVE CLOSED VALVE OPEN 0000 HS 0000 XA 0000 ZI 0000 XI OP/CL MISMATCH OP/CL L/R OP/CL OP/CL L/R 0000 XA MISMATCH OP/CL P&ID ACTUAL TYPICAL # 11 - FLOW CONTROL WITH MAGNETIC FLOW METER AND VALVE - T11 M M 0000 FE + 0000 FV + 0000 FE + 0000 FV + 0000 FIT 0000 FIT 0000 FIC 0000 FIC 0000 FQI P&ID ACTUAL HH, P1 H, P2 L, P2 LL, P1 D P TYPICAL # 12 - FLOW CONTROL WITH REAGENT EJECTOR - T12 0000 FE + 0000 FE + 0000 FIC 0000 FIC 0000 FI 0000 FQI 0000 FQI H, P2 L, P2 P&ID ACTUAL 0000 XV + AG KM LT ISSUED FOR CLIENT REVIEW 15-Dec-11 B RP ISSUED FOR COMBINED REVIEW 08-Jul-11 A 12/15/2011 K. MUNDY A.J. GUNSON T. OH L. TAMELIN 12/15/2011 3:33:44 PM WBS: 0000 B PIPING AND INSTRUMENTATION DIAGRAM GENERAL 0000-25J-005 MOTOR AND VALVE CONTROL SCHEME 2 OF 2 ES ES ES AI ES ES ES 0000 XA MISMATCH 0000 ZS OP/CL 0000 FY S 0000 XYO + 0000 XYC + KNIFE GATE VALVE SHOWN KNIFE GATE VALVE SHOWN 0000 A HS 0000 B HS 0000 ZL OP/CL L/R OP/CL/FAULT KNIFE GATE VALVE SHOWN V3 KNIFE GATE VALVE SHOWN HH, P1 H, P2 L, P2 LL, P1 H, P2 L, P2 V V S V V V V AUTOMATED VALVE LEGEND E/H 0000 XV + 0000 HY 0000 ZSC 0000 ZSO 0000 HS 0000 XA 0000 ZI 0000 XI OP/CL MISMATCH OP/CL L/R OP/CL ACTUAL ES 0000 A HS 0000 B HS 0000 ZL OP/CL L/R OP/CL/FAULT KNIFE GATE VALVE SHOWN E/H 0000 XV + 0000 B HS 0000 ZS OP/CL L/R 0000 XA MISMATCH OP/CL P&ID ES V5 KNIFE GATE VALVE SHOWN TYPICAL # 15 - ON/OFF VALVE ELECTRO-HYDRAULIC CONTROL - V5 VENT 0000 ZSO 0000 ZSC 0000 XS 0000 XA 0000 ZIC 0000 ZIO OP/CL MISMATCH VALVE CLOSED VALVE OPEN 0000 XV + AI KNIFE GATE VALVE SHOWN 0000 XV + V2 0000 XA MISMATCH 0000 ZS KNIFE GATE VALVE SHOWN ACTUAL P&ID S 0000 XY + 0000 XV + V4 0000 XA MISMATCH 0000 ZS KNIFE GATE VALVE SHOWN P&ID S 0000 ZSO 0000 ZSC 0000 XS 0000 XA 0000 ZIC 0000 ZIO OP/CL MISMATCH VALVE CLOSED VALVE OPEN 0000 XV + KNIFE GATE VALVE SHOWN HYDRAULIC RETURN TYPICAL # 14 - ON/OFF VALVE HYDRAULIC CONTROL - V4 TYPICAL # 13 - ON/OFF VALVE SPRING RETURN SINGLE ACTING(SINGLE CONTROL) - V2 ACTUAL H H, P2 L, P2 HS AI
  • 6.
    ROCK BREAKER HYDRAULIC SYSTEM 43KW P.O NO.: VENDOR DWG NO.: VENDOR: P.O NO.: VENDOR DWG NO.: VENDOR: P.O NO.: VENDOR DWG NO.: VENDOR: 3110 30384 II 3110 30282 HS J/SP 3110 00104 C HS 3110 00101 LI 3110 30404 C FAL P1 3110 30301 PDI 3110 30401 XA 3110 30581 XA 3110 30385 XA 3110 30281 II 3110 00104 D HS 3110 00181 HS J/SP 3110 00182 II 3110 30404 A FISL 3110 00104 B XL NO DUMP 3110 00101 LIT 3110 30301 LI H, P2 3110 30102 ZE 3110 30404 B FAL 3110 30382 II 3110 30401 ZS 3110 30402 TI 3110 00131 B AT 3110 00131 A LIT 3110 00104 A HS 3110 00102 LI 3110 30403 TI 3110 30102 ZIT M 3110 30401 PI 3110 30404 C FISL 3110 30581 HS J/SP 3110 30381 II 3110 30201 XA FAULT 3110 30382 XA 3110 00103 LAL 3110 30401 TI 3110 30201 PDI 3110 30301 ZI 3110 00102 LT 3110 00131 B LIT 3110 30381 XA 3110 30382 HS J/SP 3110 00182 HS J/SP 3110 00101 LE 3110 30101 A TI 3110 30402 PI 3110 30381 HS J/SP 3110 30101 B TI HH, P1 H, P2 3110 30201 LI 3110 30101 A TE 3110 00102 A LI 3110 00131 B AI 3110 00181 H TE 3110 00181 II 3110 30102 ZI 3110 30383 XA 3110 30301 A TI 3110 30385 II 3110 30383 HS J/SP 3110 00131 A LE 3110 00104 A XL 3110 30383 II 3110 00104 D XL NO DUMP 3110 00101 LX 3110 00104 B HS 3110 30282 II 3110 00104 C XL 3110 00102 LE 3110 30102 ZY 3110 30385 HS J/SP 3110 30501 XA 3110 30384 XA 3110 30501 YS 3110 30502 PI 3110 30301 XA 3110 00103 LSL 3110 30282 XA 3110 30101 B TE 3110 30281 XA 3110 00181 G TE 3110 00131 B LE 3110 30404 B FISL 3110 30384 HS J/SP 3110 30404 A FAL 3110 00181 G TI REAR H, P2 HH, P1 3110 30281 HS J/SP 3110 00182 XA 3110 30301 B TI HH, P1 H, P2 3110 00181 H TI 3110 30403 TE 3110 00104 HS HORN 3110 30581 II WASTE OIL OIL CONTAINMENT TANK, C2-3110-TK-010 1769 3100-25J-004 FRESH WATER DISTRIBUTION 1767 5100-25J-014 PRIMARY CRUSHED ORE APRON FEEDER, C2-3110-FE-011 1768 3100-25J-004 ACCUMULATOR MISMATCH HH, P1 H, P2 P1 DUMP POCKET 500 T LIVE CAPACITY FRONT H, P2 HH, P1 FAULT HAUL TRUCK 24 0 TON NO DUMP SOUTH HAUL TRUCK 24 0 TON FAULT OP/CL FAULT FAULT TRAFFIC CONTROL (N) INBOARD BRG L, P2 LL, P1 NO DUMP NORTH DUMP SOUTH H, P2 OUTBOARD BRG L, P1 LL, P2 VENDOR P2 HH, P1 H, P2 TRAFFIC CONTROL (S) PARTICLE SIZE LUBE OIL COOLER A P1 DUMP NORTH V FAULT LUBE OIL COOLER B DUMP DUMP NUCLEAR ROCK BREAKER REMOTE CONTROL FAULT FAULT H, P2 L, P2 ROCK BREAKER CONTROL PANEL (CONTROL RM) V 3" 3" 4"x3" V V V 1-1/2"x1-1/4" C2-3110-LU-001 C2-3110-ST-001 V C2-3110-HY-001 V 4"x3" V C2-3110-CR-001 C2-3110-BL-001 3110 30401 XV + V 3" 3110 00104 XA + C2-3110-ZM-011 C2-3110-RB-001 1-1/2"x3/4" 3110 30402 PSV + 3"x2" V C2-3110-CK-001 3" C2-3110-LU-002 V V V 3110-OLL-1010-S1A-6"-H V 3110-WF-1085-C1A-8"-N V 3110-OLH-1002-S4A-3/4"-H 3110-OLL-1004-S1A-3"-H V 3110-OLL-1007-S1A-3"-H V V ES 3110-WF-1210-C1A-4"-N V 3110-OLL-1009-S1A-3/4"-H 3110-DR-1001-C1B-4"-N V ES 3110-WF-1212-C1A-4"-N ES V V V 3110-OLL-1005-S1A-3"-H V V 3110-OLH-1001-S7A-1/2"-H ES V 3110-OLL-1011-S1A-3"-H 3110-OLL-1003-S1A-3"-H 3110-ALP-1001-C1A-1-1/2"-N 3110-OLH-1003-S4A-3"-H V V V 3110-OLL-1008-S1A-2"-H SIZE: C2-3110-ST-001 PRIMARY CRUSHER DISCHARGE CHUTE 3110-OLL-1001-S1A-3"-H D 4 F B A 3 2 1 5 6 8 E 7 C REV. APPROVED CHK. DES. REV. DATE REVISION DESCRIPTION CLIENT LEAD ENGINEER SCALE DRAWING NUMBER CHECK DESIGN CHECK DRAWING DESIGNED BY DRAWN BY APPROVAL DATE APPROVAL DATE APPROVED CHK. DES. REV. DATE REVISION DESCRIPTION REFERENCE DRAWING No. 1:100 0 1:200 5m 10m 0 5m 10m 15m 20m 1:500 10m 0 20m 30m 40m 50m 1:1000 0 100m 50m 1:20 0 0.5m 1m 1.5m 2m 0 1:25 0.5m 1m 1.5m 1:33 1/3 2.5m 2m 0 1m 2m 3m 0 1:50 1m 2m 3m 4m 5m CAD FILE NAME: P:0CAD000SPEM** MODEL UPDATED: DWG. FILE UPDATED: MANUAL CHANGES MADE: YES NO YES NO YES NO PROJECT MANAGER ENGINEERING MANAGER AREA PROJECT ENGINEER REFERENCE DRAWINGS SAFETY SHARE: APPROVAL DATE CONTRACT NO. SAFETY SHARE : BA6CVA1.IGR NOTICE: THIS DRAWING HAS NOT BEEN PUBLISHED AND IS THE SOLE PROPERTY OF FLUOR AND IS LENT TO THE BORROWER FOR THEIR CONFIDENTIAL USE ONLY, AND IN CONSIDERATION OF THE LOAN OF THIS DRAWING, THE BORROWER PROMISES AND AGREES TO RETURN IT UPON REQUEST AND AGREES THAT IT WILL NOT BE REPRODUCED, COPIED LENT OR OTHERWISE DISPOSED OF DIRECTLY OR INDIRECTLY, NOR USED FOR ANY OTHER PURPOSE OTHER THAN WHICH IT IS FURNISHED. NONE Apr 2011 240K-C2- AG GV LT ISSUED FOR CLIENT REVIEW 19-Dec-11 B RP ISSUED FOR COMBINED REVIEW 23-Jun-11 A 12/19/2011 G. VICENTIJEVIC A. GUNSON T. OH L. TAMELIN 12/19/2011 10:52:43 AM WBS: 3110 B PIPING AND INSTRUMENTATION DIAGRAM PRIMARY CRUSHING 3100-25J-001 PRIMARY CRUSHER NO. 1 T1 3110 00181 XA FAULT FAULT FAULT C2-3100-25J-302 C2-3100-25J-303 3100-25J-305 V C2-3110-CK-002 SIZE: MOTOR: C2-3110-CK-002 PRIMARY CRUSHER LUBE OIL COOLER SYSTEM SIZE: MOTOR: C2-3110-CK-001 PRIMARY CRUSHER LUBE OIL COOLER SYSTEM SIZE: MOTOR: C2-3110-LU-001 PRIMARY CRUSHER LUBE OIL SYSTEM SIZE: MOTOR: C2-3110-HY-001 PRIMARY CRUSHER HYDRAULIC SETTING SYSTEM 7.5 KW 22 KW 7.5 KW 2 X 5.6 KW SIZE: MOTOR: C2-3110-ZM-011 PRIMARY CRUSHER ECCENTRIC CART 37 KW SIZE: 60" x 113" MOTOR: 750.00 kW C2-3110-CR-001 PRIMARY CRUSHER GYRATORY SIZE: 74 cfm MATERIAL: MOTOR: 0.45 kW C2-3110-BL-001 CRUSHER DUST SEAL BLOWER SIZE: MOTOR: C2-3110-LU-002 PRIMARY CRUSHER SPIDER LUBE SYSTEM 0.37 KW C2-3110-BN-003 SIZE:500 t LIVE C2-3110-BN-003 SURGE POCKET C2-3110-PW-025 RAW SEWAGE SEPTIC TANK 3225 SIZE: MATERIAL: MOTOR: 3.70 kW C2-3110-PW-025 SUBMERSIBLE SEWAGE PUMP PRIMARY CRUSHER NO. 1 SIZE: MOTOR: C2-3110-RB-001 HYDRAULIC ROCK BREAKER C2-3110-HY-002 SIZE: MOTOR: C2-3110-HY-002 ROCK BREAKER HYDRAULIC UNIT 150 KW BRG BRG IMAGE 3110 00131 A AT 3110 00131 A AI IMAGE V V 3110-OLL-1006-S1A-3"-H 3110-OLL-1002-S1A-3"-H C2-3110-CN-001 SIZE: C2-3110-CN-001 JIB CRANE ES M M 3110 00132 A FIT 3110 00132 B FIT 3110 00132 A FE + 3110 00132 B FE + 3110 00132 A FIC 3110 00132 B FIC 3110 00132 A FV + 3110 00132 B FV + 1" 1/2" /9.8 GPM (TYP ALL) /54 GPM (TYP ALL)
  • 7.
    D 4 F B A 3 2 1 5 68 E 7 C REV. APPROVED CHK. DES. REV. DATE REVISION DESCRIPTION CLIENT LEAD ENGINEER SCALE DRAWING NUMBER CHECK DESIGN CHECK DRAWING DESIGNED BY DRAWN BY APPROVAL DATE APPROVAL DATE APPROVED CHK. DES. REV. DATE REVISION DESCRIPTION REFERENCE DRAWING No. 1:100 0 1:200 5m 10m 0 5m 10m 15m 20m 1:500 10m 0 20m 30m 40m 50m 1:1000 0 100m 50m 1:20 0 0.5m 1m 1.5m 2m 0 1:25 0.5m 1m 1.5m 1:33 1/3 2.5m 2m 0 1m 2m 3m 0 1:50 1m 2m 3m 4m 5m CAD FILE NAME: P:0CAD000SPEM** MODEL UPDATED: DWG. FILE UPDATED: MANUAL CHANGES MADE: YES NO YES NO YES NO PROJECT MANAGER ENGINEERING MANAGER AREA PROJECT ENGINEER REFERENCE DRAWINGS SAFETY SHARE: APPROVAL DATE CONTRACT NO. SAFETY SHARE : BA6CVA1.IGR NOTICE: THIS DRAWING HAS NOT BEEN PUBLISHED AND IS THE SOLE PROPERTY OF FLUOR AND IS LENT TO THE BORROWER FOR THEIR CONFIDENTIAL USE ONLY, AND IN CONSIDERATION OF THE LOAN OF THIS DRAWING, THE BORROWER PROMISES AND AGREES TO RETURN IT UPON REQUEST AND AGREES THAT IT WILL NOT BE REPRODUCED, COPIED LENT OR OTHERWISE DISPOSED OF DIRECTLY OR INDIRECTLY, NOR USED FOR ANY OTHER PURPOSE OTHER THAN WHICH IT IS FURNISHED. NONE Apr 2011 240K-C2- ROCK BREAKER HYDRAULIC SYSTEM 43 KW P.O NO.: VENDOR DWG NO.: VENDOR: P.O NO.: VENDOR DWG NO.: VENDOR: P.O NO.: VENDOR DWG NO.: VENDOR: 3110 00231 B LIT 3110 00204 D XL NO DUMP 3110 31281 XA 3110 00281 H TI 3110 31581 II 3110 00281 G TI BRG REAR H, P2 HH, P1 3110 00204 C HS 3110 31381 II 3110 31384 II 3110 00231 B LE 3110 00201 LIT 3110 31402 PI 3110 00202 LT 3110 31383 II 3110 31282 XA 3110 31404 A FISL 3110 00204 C XL 3110 31281 II 3110 31502 PI 3110 31102 ZIT 3110 31384 XA 3110 00202 A LI 3110 00282 II 3110 31101 A TI 3110 00204 HS HORN 3110 31403 TI 3110 00282 XA 3110 00203 LAL 3110 31382 XA 3110 31301 XA 3110 31282 HS J/SP 3110 00201 LI 3110 31501 YS 3110 31401 XA 3110 31403 TE 3110 31102 ZI 3110 31383 XA 3110 31382 II 3110 31404 B FAL 3110 00203 LSL 3110 00202 LI 3110 31385 HS J/SP 3110 31381 HS J/SP 3110 31201 PDI 3110 31383 HS J/SP 3110 00204 A HS 3110 31401 TI 3110 31404 C FAL P1 3110 00231 A LIT 3110 31501 XA 3110 31281 HS J/SP 3110 00231 B AI 3110 31201 XA FAULT M 3110 31404 B FISL 3110 31385 XA 3110 31581 HS J/SP 3110 31301 ZI 3110 31301 B TI HH, P1 H, P2 3110 31401 PI 3110 00204 B HS 3110 00231 B AT 3110 00201 LX 3110 00281 H TE 3110 00231 A LE 3110 00282 HS J/SP 3110 00281 II 3110 31382 HS J/SP 3110 31404 C FISL 3110 31301 PDI 3110 31385 II 3110 31402 TI 3110 00204 D HS 3110 31301 LI H, P2 3110 31101 B TE 3110 31381 XA 3110 31101 A TE 3110 31401 ZS 3110 31301 A TI 3110 00202 LE 3110 31101 B TI HH, P1 H, P2 3110 00204 A XL 3110 31404 A FAL 3110 00281 G TE 3110 00201 LE 3110 00281 HS J/SP 3110 31282 II 3110 00204 B XL NO DUMP 3110 00281 XA 3110 31102 ZE 3110 31384 HS J/SP 3110 31201 LI 3110 31102 ZY 3110 31581 XA PRIMARY CRUSHED ORE APRON FEEDER, C2-3110-FE-021 1833 3100-25J-005 WASTE OIL OIL CONTAINMENT TANK, C2-3110-TK-007 1834 3100-25J-005 FRESH WATER DISTRIBUTION 1832 5100-25J-014 P1 NUCLEAR V LUBE OIL COOLER B HH, P1 H, P2 H, P2 L, P2 ACCUMULATOR NO DUMP NORTH DUMP SOUTH FAULT FAULT DUMP L, P1 LL, P2 FAULT OUTBOARD BRG P1 DUMP NORTH FAULT P2 OP/CL NO DUMP SOUTH DUMP POCKET 500 T LIVE CAPACITY PARTICLE SIZE HAUL TRUCK 24 0 TON MISMATCH DUMP ROCK BREAKER REMOTE CONTROL HH, P1 H, P2 TRAFFIC CONTROL (N) INBOARD BRG FAULT HAUL TRUCK 24 0 TON BRG FRONT H, P2 HH, P1 H, P2 FAULT LUBE OIL COOLER A VENDOR TRAFFIC CONTROL (S) L, P2 LL, P1 ROCK BREAKER CONTROL PANEL (CONTROL RM) FAULT ES V V V V V ES ES V V V V V V ES V V V V V V 3" V SIZE: C2-3110-ST-004 PRIMARY CRUSHER DISCHARGE CHUTE 3" V 3110-OLH-1004-S7A-1/2"-H 3"x2" 1-1/2"x3/4" V 3110-OLL-1018-S1A-3"-H V C2-3110-LU-004 3110-OLH-1006-S4A-3"-H 4"x3" 3110-OLL-1012-S1A-3"-H V 3" C2-3110-RB-002 4"x3" 3110-OLH-1005-S4A-3/4"-H 3110-OLL-1021-S1A-6"-H V 1-1/2"x1-1/4" V 3110-OLL-1016-S1A-3"-H 3110 31401 XV + 3110-DR-1003-C1B-4"-N C2-3110-LU-003 V C2-3110-ZM-012 3110-WF-1096-C1A-8"-N C2-3110-CR-002 C2-3110-BL-002 V C2-3110-HY-004 3110-ALP-1002-C1A-1-1/2"-N 3110 31402 PSV + C2-3110-ST-004 V 3110-OLL-1014-S1A-3"-H 3110-OLL-1022-S1A-3"-H C2-3110-CK-004 3110-OLL-1015-S1A-3"-H 3110 00204 XA + 3110-OLL-1019-S1A-2"-H 3110-OLL-1020-S1A-3/4"-H 3" V AG GV LT ISSUED FOR CLIENT REVIEW 19-Dec-11 B RP ISSUED FOR COMBINED REVIEW 23-Jun-11 A 12/19/2011 G. VICENTIJEVIC A. GUNSON T. OH L. TAMELIN 12/19/2011 9:48:07 AM WBS: 3110 B PIPING AND INSTRUMENTATION DIAGRAM PRIMARY CRUSHING 3100-25J-002 PRIMARY CRUSHER NO. 2 T1 FAULT FAULT FAULT C2-3100-25J-312 C2-3100-25J-313 C2-3100-25J-315 C2-3110-CK-003 SIZE: MOTOR: C2-3110-CK-003 PRIMARY CRUSHER LUBE OIL COOLER SYSTEM SIZE: MOTOR: C2-3110-CK-004 PRIMARY CRUSHER LUBE OIL COOLER SYSTEM 7.5 KW 7.5 KW SIZE: MOTOR: C2-3110-LU-003 PRIMARY CRUSHER LUBE OIL SYSTEM SIZE: MOTOR: C2-3110-HY-004 PRIMARY CRUSHER HYDRAULIC SETTING SYSTEM 22 KW 2 X 5.60 KW SIZE: MOTOR: C2-3110-LU-004 PRIMARY CRUSHER SPIDER LUBE SYSTEM 0.37 KW SIZE: MOTOR: 37.00 kW C2-3110-ZM-012 PRIMARY CRUSHER ECCENTRIC CART SIZE: 74 cfm MATERIAL: MOTOR: 0.45 kW C2-3110-BL-002 CRUSHER DUST SEAL BLOWER SIZE: 60" x 113" MOTOR: 750.00 kW C2-3110-CR-002 PRIMARY CRUSHER GYRATORY C2-3110-BN-010 SIZE:500 t LIVE C2-3110-BN-010 SURGE POCKET SIZE: C2-3110-RB-002 HYDRAULIC ROCK BREAKER SIZE: MOTOR: C2-3110-HY-005 ROCK BREAKER HYDRAULIC UNIT 150 KW RAW SEWAGE TO SEPTIC TANK 3226 C2-3110-PW-026 SIZE: MATERIAL: MOTOR: 3.70 kW C2-3110-PW-026 SUBMERSIBLE SEWAGE PUMP PRIMARY CRUSHER NO.2 IMAGE C2-3110-HY-005 3110 00231 A AI 3110 00231 A AT IMAGE V V V 3110-OLL-1017-S1A-3"-H 3110-OLL-1013-S1A-3"-H C2-3110-CN-002 SIZE: C2-3110-CN-002 JIP CRANE 3110 00232 B FV + 3110 00232 B FIC 3110 00232 B FE + 3110 00232 B FIT 3110-WF-1220-C1A-4"-N 1/2" 1" 3110 00232 A FV + 3110 00232 A FIC 3110 00232 A FE + 3110 00232 A FIT M 3110-WF-1218-C1A-4"-N /54 GPM (TYP ALL) /9.8 GPM (TYP ALL) M
  • 8.
    TO DRAIN BY VENDOR TODRAIN BY VENDOR 3100 00380 HS J/SP 3100 00380 XA 3100 00380 II 3100 00301 PI 3100 00302 PIT 3100 00302 PI 3100 00311 PI 3100 00312 PI 3100 00312 PIT 3100 00390 HS J/SP 3100 00390 XA 3100 00390 II TO ATM TO ATM DISCHARGE PRESSURE @ MAXIMUM 758 KPA (G) OPERATING 690 KPA (G) MINIMUM 620 KPA (G) FAULT SET @ 862.00 KPA (G) VENDOR SUPPLY AUTO DRAIN DIRT POCKET L, P2 DISCHARGE PRESSURE @ MAXIMUM 758 KPA (G) OPERATING 690 KPA (G) MINIMUM 620 KPA (G) SET @ 862.00 KPA (G) VENDOR SUPPLY AUTO DRAIN FAULT L, P2 DIRT POCKET C2-3110-CO-002 C2-3110-VS-001 C2-3110-VS-002 SIZE: MOTOR: C2-3110-CO-001 PRIMARY CRUSHER AIR COMPRESSOR SIZE: MOTOR: C2-3110-CO-002 PRIMARY CRUSHER AIR COMPRESSOR 3100 00311 PSV + BU 1/2" BA V V V V 3110-AP-1017-C1A-1"-N 3110-AP-1016-C1A-4"-N C2-3110-CO-001 CH 1" BA 1" BA 1" BA 1" BA V V 1" BA 1" BA 1/2" 3100-AP-1025-C1A-1"-N 1" BA BA DRAIN 1" BA 3"x2" BU 3110-AP-1024-C1A-1"-N 3110-AP-1014-C1A-3"-N 3110-AP-1023-C1A-1"-N 3110-AP-1022-C1A-1"-N 3110-AP-1021-C1A-1"-N 3110-AP-1020-C1A-1"-N 3110-AP-1019-C1A-1"-N 1" BA 1" BA 1" BA CH-2130 3110-AP-1004-C1A-1"-N 3110-AP-1006-C1A-1"-N 3110-AP-1007-C1A-1"-N 3110-AP-1008-C1A-1"-N 3110-AP-1009-C1A-1"-N 3110-AP-1010-C1A-1"-N 3110-AP-1011-C1A-1"-N 3110-AP-1012-C1A-1"-N AG GV LT ISSUED FOR CLIENT REVIEW 19-Dec-11 B RP ISSUED FOR COMBINED REVIEW 08-Jul-11 A 12/19/2011 G. VICENTIJEVIC A. GUNSON T. OH L. TAMELIN 12/19/2011 9:57:04 AM WBS: 3100 B PIPING AND INSTRUMENTATION DIAGRAM PRIMARY CRUSHING AND ORE HANDLING 3100-25J-003 PLANT AIR V DRAIN V V V V 3100 00301 PSV + V BA 1/2" 1/2" BA 3110-AP-1003-C1A-4"-N 3110-AP-1001-C1A-3"-N BU BU 3"x2" 1" BA 1" BA 1" BA 1" BA 1" BA SIZE: C2-3110-VS-001 PRIMARY CRUSHER AIR RECEIVER SIZE: C2-3110-VS-002 PRIMARY CRUSHER AIR RECEIVER D 4 F B A 3 2 1 5 6 8 E 7 C REV. APPROVED CHK. DES. REV. DATE REVISION DESCRIPTION CLIENT LEAD ENGINEER SCALE DRAWING NUMBER CHECK DESIGN CHECK DRAWING DESIGNED BY DRAWN BY APPROVAL DATE APPROVAL DATE APPROVED CHK. DES. REV. DATE REVISION DESCRIPTION REFERENCE DRAWING No. 1:100 0 1:200 5m 10m 0 5m 10m 15m 20m 1:500 10m 0 20m 30m 40m 50m 1:1000 0 100m 50m 1:20 0 0.5m 1m 1.5m 2m 0 1:25 0.5m 1m 1.5m 1:33 1/3 2.5m 2m 0 1m 2m 3m 0 1:50 1m 2m 3m 4m 5m CAD FILE NAME: P:0CAD000SPEM** MODEL UPDATED: DWG. FILE UPDATED: MANUAL CHANGES MADE: YES NO YES NO YES NO PROJECT MANAGER ENGINEERING MANAGER AREA PROJECT ENGINEER REFERENCE DRAWINGS SAFETY SHARE: APPROVAL DATE CONTRACT NO. SAFETY SHARE : BA6CVA1.IGR NOTICE: THIS DRAWING HAS NOT BEEN PUBLISHED AND IS THE SOLE PROPERTY OF FLUOR AND IS LENT TO THE BORROWER FOR THEIR CONFIDENTIAL USE ONLY, AND IN CONSIDERATION OF THE LOAN OF THIS DRAWING, THE BORROWER PROMISES AND AGREES TO RETURN IT UPON REQUEST AND AGREES THAT IT WILL NOT BE REPRODUCED, COPIED LENT OR OTHERWISE DISPOSED OF DIRECTLY OR INDIRECTLY, NOR USED FOR ANY OTHER PURPOSE OTHER THAN WHICH IT IS FURNISHED. NONE Apr 2011 240K-C2- 3110-AP-1015-C1A-1-1/2"-N 3110-AP-1002-C1A-1-1/2"-N PLANT AIR DUST SUPPRESION 3401 3100-25J-004 3110-AP-1005-C1A-2"-N 3110-AP-1013-C1A-2"-N PLANT AIR METAL DETECTOR 3402 3100-25J-006 PLANT AIR DUST SUPPRESION 3403 3100-25J-005 3110-AP-1018-C1A-2"-N 3110-AP-1026-C1A-2"-N PLANT AIR METAL DETECTOR 3404 3100-25J-007
  • 9.
    RHS HH, P1 H, P2 3110 00415B LAH 3110 00415 A LE 3110 00403 B SI 3110 00415 A LSH 3110 00415 B LE 3110 00415 A LAH 3110 00402 B HSS 3110 32081 HS J/SP 3110 00431 YI 3110 00402 A HSS 3110 00403 A SI 3110 00403 SDI 3110 00401 B HSS 3110 32081 XA 3110 00403 B ST 3110 00403 A SE 3110 32001 LI 3110 00402 HSA 3110 00431 YT 3110 00401 A HSS LHS 3110 32001 TI 3110 00403 A ST 3110 00401 HSA RHS P1 3110 00415 B LSH 3110 00403 B SE C C T V 3110 32001 PDI PRIMARY CRUSED ORE PRIMARY CRUSHER, C2-3110-CR-011 1768 3100-25J-001 COARSE ORE CONVEYOR BELT SCALE, 3120-WIC-00610 1772 3100-25J-006 PRIMARY CRUSHED ORE COARSE ORE CONVEYOR, C2-3120-CV-012 1771 3100-25J-006 WASTE OIL LUBE OIL RESERVOIR 1769 3100-25J-001 P1 LHS P1 L, P2 RHS HYDRAULIC DRIVE SEE VENDOR DRAWING C2-3100-25J-320 P1 H, P1 LHS 3110-DR-1002-C1B-4"-N 3110-DR-1001-C1B-4"-N SIZE:2.0 mD x 1.4 mH MATERIAL: CAPACITY: TRIM:C1B C2-3110-TK-010 OIL CONTAINMENT TANK ES SIZE: 2700 mm MATERIAL: MOTOR: C2-3110-FE-011 APRON FEEDER SIZE:N/A C2-3110-ST-002 COARSE ORE CONVEYOR FEED CHUTE ES ES ES AG GV LT ISSUED FOR CLIENT REVIEW 19-Dec-11 B RP ISSUED FOR COMBINED REVIEW 23-Jun-11 A 12/19/2011 G. VICENTIJEVIC A. GUNSON T. OH L. TAMELIN 12/19/2011 9:49:31 AM WBS: 3110 B PIPING AND INSTRUMENTATION DIAGRAM PRIMARY CRUSHING 3100-25J-004 APRON FEEDER NO. 1 C2-3110-TK-010 C2-3110-ST-002 C2-3110-FE-011 D 4 F B A 3 2 1 5 6 8 E 7 C REV. APPROVED CHK. DES. REV. DATE REVISION DESCRIPTION CLIENT LEAD ENGINEER SCALE DRAWING NUMBER CHECK DESIGN CHECK DRAWING DESIGNED BY DRAWN BY APPROVAL DATE APPROVAL DATE APPROVED CHK. DES. REV. DATE REVISION DESCRIPTION REFERENCE DRAWING No. 1:100 0 1:200 5m 10m 0 5m 10m 15m 20m 1:500 10m 0 20m 30m 40m 50m 1:1000 0 100m 50m 1:20 0 0.5m 1m 1.5m 2m 0 1:25 0.5m 1m 1.5m 1:33 1/3 2.5m 2m 0 1m 2m 3m 0 1:50 1m 2m 3m 4m 5m CAD FILE NAME: P:0CAD000SPEM** MODEL UPDATED: DWG. FILE UPDATED: MANUAL CHANGES MADE: YES NO YES NO YES NO PROJECT MANAGER ENGINEERING MANAGER AREA PROJECT ENGINEER REFERENCE DRAWINGS SAFETY SHARE: APPROVAL DATE CONTRACT NO. SAFETY SHARE : BA6CVA1.IGR NOTICE: THIS DRAWING HAS NOT BEEN PUBLISHED AND IS THE SOLE PROPERTY OF FLUOR AND IS LENT TO THE BORROWER FOR THEIR CONFIDENTIAL USE ONLY, AND IN CONSIDERATION OF THE LOAN OF THIS DRAWING, THE BORROWER PROMISES AND AGREES TO RETURN IT UPON REQUEST AND AGREES THAT IT WILL NOT BE REPRODUCED, COPIED LENT OR OTHERWISE DISPOSED OF DIRECTLY OR INDIRECTLY, NOR USED FOR ANY OTHER PURPOSE OTHER THAN WHICH IT IS FURNISHED. NONE Apr 2011 240K-C2- FAULT A,B A,B C2-3110-HY-003 SIZE: MOTOR: C2-3110-HY-003 APRON FEEDER HYDRAULIC UNIT 2 X 150 KW C2-3110-ST-003 SIZE: C2-3110-ST-003 PRIMARY CRUSHER NO. 1 APRON FEEDER DRIBBLE CHUTE VENDOR V V V V V V V V M C2-3110-ZV-019 C2-3110-DC-019 C2-3110-FA-019 TO ATMOSPHERE PLANT AIR 3401 3100-25J-003 3110-AP-1005-C1A-2"-N 3110 00481 II 3110 00481 XA 3110 00481 HS FAULT ST/SP SIZE: C2-3110-DC-019 PRIMARY CRUSHING DUST COLLECTOR NO. 1 SIZE: C2-3110-ZV-019 PRMARY CRUSHING DUST COLLECTOR ROTARY AIR LOCK NO. 1 SIZE: C2-3110-FA-019 PRIMARY CRUSHING DUST COLLECTOR FAN NO. 1 FILTERED DUST COARSE ORE CONVEYOR, C2-3120-CV-012 2870 3100-25J-006 J/SP 3120 00485 HS V SIZE: C2-3120-MA-011 FE-011 SELF CLEANING MAGNET V V ES V C2-3120-MA-011 C2-3120-BN-001 P2 C2-3120-ST-006 3120 00422 ZAH 3120 00422 ZS P1 3120 00421 SAL 3120 00421 SSL SIZE: C2-3120-BN-001 FE-011 TRAMP METAL BIN 3120 00421 SE SIZE: C2-3120-ST-006 FE-011 TRAMP METAL CHUTE T1 FAULT 3120 00422 ZSHH 3120 00485 II 3120 00422 ZAHH 3120 00485 XA P1 HYDRAULIC DUST COARSE ORE CONVEYOR NO.1, 3120-CV-012 3861 3100-25J-006 T1 3110 00481 II 3110 00481 XA 3110 00481 HS FAULT ST/SP VENDOR A,B A,B A,B A,B
  • 10.
    D 4 F B A 3 2 1 5 68 E 7 C REV. APPROVED CHK. DES. REV. DATE REVISION DESCRIPTION CLIENT LEAD ENGINEER SCALE DRAWING NUMBER CHECK DESIGN CHECK DRAWING DESIGNED BY DRAWN BY APPROVAL DATE APPROVAL DATE APPROVED CHK. DES. REV. DATE REVISION DESCRIPTION REFERENCE DRAWING No. 1:100 0 1:200 5m 10m 0 5m 10m 15m 20m 1:500 10m 0 20m 30m 40m 50m 1:1000 0 100m 50m 1:20 0 0.5m 1m 1.5m 2m 0 1:25 0.5m 1m 1.5m 1:33 1/3 2.5m 2m 0 1m 2m 3m 0 1:50 1m 2m 3m 4m 5m CAD FILE NAME: P:0CAD000SPEM** MODEL UPDATED: DWG. FILE UPDATED: MANUAL CHANGES MADE: YES NO YES NO YES NO PROJECT MANAGER ENGINEERING MANAGER AREA PROJECT ENGINEER REFERENCE DRAWINGS SAFETY SHARE: APPROVAL DATE CONTRACT NO. SAFETY SHARE : BA6CVA1.IGR NOTICE: THIS DRAWING HAS NOT BEEN PUBLISHED AND IS THE SOLE PROPERTY OF FLUOR AND IS LENT TO THE BORROWER FOR THEIR CONFIDENTIAL USE ONLY, AND IN CONSIDERATION OF THE LOAN OF THIS DRAWING, THE BORROWER PROMISES AND AGREES TO RETURN IT UPON REQUEST AND AGREES THAT IT WILL NOT BE REPRODUCED, COPIED LENT OR OTHERWISE DISPOSED OF DIRECTLY OR INDIRECTLY, NOR USED FOR ANY OTHER PURPOSE OTHER THAN WHICH IT IS FURNISHED. NONE Apr 2011 240K-C2- 3110 00503 A SE 3110 00502 A HSS 3110 00502 B HSS 3110 00503 B ST 3110 00503 B SE 3110 00503 B SI 3110 00502 HSA 3110 00501 HSA 3110 00501 A HSS 3110 00501 B HSS 3110 00503 A ST 3110 00503 A SI 3110 32101 PDI 3110 32101 TI 3110 32101 LI 3110 32181 XA 3110 32181 HS HYDRAULIC DRIVE SEE VENDOR DRAWING C2-3100-25J-321 J/SP L, P2 RHS P1 LHS RHS LHS RHS C2-3110-TK-007 C2-3110-FE-021 SIZE:2.0 mD x 1.4 mH MATERIAL: CAPACITY: TRIM:C1B C2-3110-TK-007 OIL CONTAINMENT TANK 3110-DR1004-C1B-4"-N C2-3110-ST-005 3110 00531 YI 3110 00531 YT C C T V LHS P1 HH, P1 H, P2 SIZE:N/A C2-3110-ST-005 COARSE ORE CONVEYOR FEED CHUTE SIZE: 2700 mm MATERIAL: MOTOR: C2-3110-FE-021 APRON FEEDER 3110 00515 A LSH 3110 00515 A LAH P1 3110 00515 A LE 3110 00503 SDI H, P1 3110 00515 B LSH 3110 00515 B LAH P1 3110 00515 B LE PRIMARY CRUSHED ORE COARSE ORE CONVEYOR, C2-3120-CV-022 1835 3100-25J-007 PRIMARY CRUSHED ORE PRIMARY CRUSHER, C2-3110-CR-021 1833 3100-25J-002 WASTE OIL LUBE OIL RESERVOIR 1834 3100-25J-002 ES ES ES ES AG GV LT ISSUED FOR CLIENT REVIEW 19-Dec-11 B RP ISSUED FOR COMBINED REVIEW 23-Jun-11 A 12/19/2011 G. VICENTIJEVIC A. GUNSON T. OH L. TAMELIN 12/19/2011 9:50:14 AM WBS: 3110 B PIPING AND INSTRUMENTATION DIAGRAM PRIMARY CRUSHING 3100-25J-005 APRON FEEDER NO. 2 FAULT COARSE ORE CONVEYOR BELT SCALE, 3120-WIC-00710 1902 3100-25J-007 A,B A,B C2-3110-HY-006 SIZE: MOTOR: C2-3110-HY-006 APRON FEEDER HYDRAULIC UNIT 2 X 150 KW C2-3110-ST-015 SIZE: C2-3110-ST-015 PRIMARY CRUSHER NO. 2 APRON FEEDER DRIBBLE CHUTE VENDOR V V V V V V V V 3110 00581 XA 3110 00581 II TO ATMOSPHERE C2-3110-FA-020 C2-3110-DC-020 C2-3110-ZV-020 3110-AP-1018-C1A-2"-N SIZE: C2-3110-FA-020 PRIMARY CRUSHING DUST COLLECTOR FAN NO. 2 SIZE: C2-3110-DC-020 PRIMARY CRUSHING DUST COLLECTOR NO. 2 SIZE: C2-3110-ZV-020 PRMARY CRUSHING DUST COLLECTOR ROTARY AIR LOCK NO. 2 M ST/SP FAULT 3110 00581 HS PLANT AIR 3403 3100-25J-003 FILTERED DUST COARSE ORE CONVEYOR, C2-3120-CV-022 2871 3100-25J-007 3110-DR-1003-C1B-4"-N V V SIZE: C2-3120-MA-021 FE-021 SELF CLEANING MAGNET C2-3120-ST-007 3120 00585 XA V 3120 00585 II 3120 00522 ZAHH FAULT P1 3120 00522 ZSHH L, P1 3120 00522 ZSH 3120 00522 ZAH P2 V C2-3120-MA-021 T1 3120 00521 SE 3120 00521 SSL 3120 00521 SA 3120 00585 HS J/SP C2-3120-BN-002 SIZE: C2-3120-BN-002 FE-021 TRAMP METAL BIN SIZE: C2-3120-ST-007 FE-021 TRAMP METAL CHUTE ES HYDRAULIC T1 DUST COARSE ORE CONVEYOR NO.2, C2-3120-CV-022 3862 3100-25J-007 3110 00581 XA 3110 00581 II ST/SP FAULT 3110 00581 HS VENDOR A,B A,B A,B A,B
  • 11.
    T8 GEAR REDUCER GEAR REDUCER GEAR REDUCER 3120 00613 B XY 3120 00613 XIH 3120 00613 A XY 3120 00613A XE 3120 00613 B XE 3120 00683 XA 3120 00683 II 3120 00681 II 3120 00681 XA 3120 00683 G TI 3120 00603 A ST 3120 00602 HSS 3120 00681 G TE 3120 00631 AT 3120 00609 NA 3120 00604 B ZSHH 3120 00682 XA 3120 00608 A XS LHS 3120 00603 B SE 3120 00610 WE 3120 00607 A TE 3120 00604 C ZSH LHS 3120 00616 LE 3120 00683 G TE 3120 00604 B ZAH 3120 00681 H TI 3120 00683 H TE 3120 00603 SDI H, P1 3120 00608 B XS RHS 3120 00603 A SE 3120 00606 A TI 3120 00616 LIT 3120 00608 XA P1 3120 00610 WIT 3120 00610 SE 3120 00682 G TE 3120 00605 C ZSHH 3120 00631 AI 3120 00609 NS 3120 00610 WIC H, P2 L, P2 3120 00604 C ZAH 3120 00602 HSA A-H 3120 00684 HS J/SP 3120 00681 G TI 3120 00605 A ZAH 3120 00605 B ZSH 3120 00682 G TI 3120 00605 A ZSH RHS 3120 00615 A LI 3120 00604 A ZSHH 3120 00604 B ZSH LHS 3120 00603 A SI P2 3120 00682 II 3120 00603 B SI 3120 00604 B ZAHH 3120 00605 B ZAHH 3120 00605 A ZSHH 3120 00682 H TE 3120 00605 B ZSHH 3120 00681 H TE 3120 00604 C ZAHH 3120 00605 B ZAH 3120 00615 LIT 3120 00605 C ZAHH 3120 00604 A ZAHH 3120 00605 A ZAHH 3120 00604 A ZAH 3120 00604 A ZSH LHS 3120 00601 HSA 3120 00605 C ZAH LHS 3120 00684 XA 3120 00616 LI 3120 00607 A TI 3120 00683 H TI 3120 00606 A TE RHS LHS 3120 00604 C ZSHH 3120 00605 C ZSH 3120 00603 B ST 3120 00684 II 3120 00682 H TI 3120 00615 LE 3120 00601 HSS 3120 00615 LI 3120 00621 VE 3120 00623 TE 3120 00622 LE 3120 00621 VT 3120 00622 LSL 3120 00622 LAL 3120 00631 VE 3120 00623 TI 3120 00621 VI 3120 00642 LAL 3120 00643 TI 3120 00641 VI 3120 00641 VE 3120 00643 TE 3120 00642 LE 3120 00641 VT 3120 00642 LSL 3120 00633 TE 3120 00632 LE 3120 00633 TI 3120 00632 LSL 3120 00631 VT 3120 00631 VI 3120 00632 LAL FILTERED DUST PRIMARY CRUSHING DUST SUPPRESSION ROTARY AIR 2870 3100-25J-004 PRIMARY CRUSHED ORE APRON FEEDER, C2-3110-FE-011 1771 3100-25J-004 FRESH WATER DISTRIBUTION 1773 5100-25J-014 DUST PRIMARY CRUSHING DUST COLLECTOR NO.1, 3861 3100-25J-004 PRIM. CRUSHER SUMP DISCHARGE TO EVAPORATION POND 1775 C2-3110-HY-003 APRON FEEDER HYDRAULIC SYSTEM SPEED CONTROL 1772 3100-25J-004 PLANT AIR PLANT AIR RECEIVER, C2-3100-VS-001 3402 3100-25J-003 A-H FAULT LHS A-H FAULT FAULT FAULT BRG REAR H, P2 HH, P1 NOTE 1 TEAR LHS LHS P1 RHS A-H WRIM BRG REAR H, P2 HH, P1 P2 WRIM H, P1 BRG REAR H, P2 HH, P1 P2 WRIM BRG FRONT H, P2 HH, P1 BRG FRONT H, P2 HH, P1 RHS P2 BRG FRONT H, P2 HH, P1 C2-3110-DC-019 CONTENTS RHS P1 RHS P2 P1 H, P1 P1 P1 P1 RHS HH, P1 H, P2 RHS P1 P1 NOTES: 1. INSTALL IN TUNNEL. A TO K A TO K A TO K A TO K I M A G E LOCK NO.1, C2-3110-ZV-019 RHS A,B H, P2 LL, P1 L,P2 HH, P1 H, P2 P2 LHS P2 SENSOR GUARD H, P2 HH, P2 H, P2 HH, P1 P2 H, P2 HH, P2 H, P2 HH, P1 P2 P2 H, P2 HH, P1 H, P2 HH, P2 3120 00611 XA + C2-3110-PP-001 COARSE ORE STOCKPILE C2-3120-MD-011 C2-3120-SL-001 T5 2"x3/4" SIZE: 1,829 m x 460 m MOTOR: 2796.00 kW C2-3120-CV-012 COARSE ORE CONVEYOR NO.1 3120-WF- -C1A-2"-N T5 T5 ES V ES C2-3120-CV-012 ES ES V 3120-SL-1781-C1B-6"-N V SIZE: C2-3120-SL-001 CV-012 4-IDLER BELT SCALE V V SIZE: MATERIAL: MOTOR: C2-3110-PP-001 PRIMARY CRUSHER CLEAN-UP PUMP NO.1 V ES ES V V V V 3120-WF-1083-C1A-3"-N 3120-AP-1013-C1A-2"-N ES SIZE: C2-3120-MD-011 CV-012 METAL DETECTOR V V AG GV LT ISSUED FOR CLIENT REVIEW 19-Dec-11 B RP ISSUED FOR COMBINED REVIEW 23-Jun-11 A 12/19/2011 G. VICENTIJEVIC A. GUNSON T. OH L TAMELIN 12/19/2011 9:51:23 AM WBS: 3120 B PIPING AND INSTRUMENTATION DIAGRAM PRIMARY CRUSHING DISCHARGE 3100-25J-006 COARSE ORE CONVEYOR NO. 1 V V V V C2-3120-ZE-001 ES SIZE: C2-3120-ZE-001 CV-012 SENSOR GUARD BELT RIP DETECTOR V V V V V ES V ES V V V V V V V ES V V D 4 F B A 3 2 1 5 6 8 E 7 C REV. APPROVED CHK. DES. REV. DATE REVISION DESCRIPTION CLIENT LEAD ENGINEER SCALE DRAWING NUMBER CHECK DESIGN CHECK DRAWING DESIGNED BY DRAWN BY APPROVAL DATE APPROVAL DATE APPROVED CHK. DES. REV. DATE REVISION DESCRIPTION REFERENCE DRAWING No. 1:100 0 1:200 5m 10m 0 5m 10m 15m 20m 1:500 10m 0 20m 30m 40m 50m 1:1000 0 100m 50m 1:20 0 0.5m 1m 1.5m 2m 0 1:25 0.5m 1m 1.5m 1:33 1/3 2.5m 2m 0 1m 2m 3m 0 1:50 1m 2m 3m 4m 5m CAD FILE NAME: P:0CAD000SPEM** MODEL UPDATED: DWG. FILE UPDATED: MANUAL CHANGES MADE: YES NO YES NO YES NO PROJECT MANAGER ENGINEERING MANAGER AREA PROJECT ENGINEER REFERENCE DRAWINGS SAFETY SHARE: APPROVAL DATE CONTRACT NO. SAFETY SHARE : BA6CVA1.IGR NOTICE: THIS DRAWING HAS NOT BEEN PUBLISHED AND IS THE SOLE PROPERTY OF FLUOR AND IS LENT TO THE BORROWER FOR THEIR CONFIDENTIAL USE ONLY, AND IN CONSIDERATION OF THE LOAN OF THIS DRAWING, THE BORROWER PROMISES AND AGREES TO RETURN IT UPON REQUEST AND AGREES THAT IT WILL NOT BE REPRODUCED, COPIED LENT OR OTHERWISE DISPOSED OF DIRECTLY OR INDIRECTLY, NOR USED FOR ANY OTHER PURPOSE OTHER THAN WHICH IT IS FURNISHED. NONE Apr 2011 240K-C2- M HH, P1 H, P2 L, P2 LL, P1 3120 00618 FV + 3120 00618 FE + 3120 00618 FIC 3120 00618 FIT M HH, P1 H, P2 L, P2 LL, P1 3120 00619 FV + 3120 00619 FE + 3120 00619 FIC 3120 00619 FIT 3120 00617 XV + 3120 00617 XA MISMATCH 3120 00617 ZS OP/CL
  • 12.
    T8 GEAR REDUCER GEAR REDUCER GEAR REDUCER 3120 00783 H XA 3120 00783 H II 3120 00781 XAFAULT 3120 00781 II 3120 00702 HSA 3120 00710 WIC H, P2 L, P2 3120 00705 A ZAHH 3120 00704 A ZAHH 3120 00705 C ZAH LHS 3120 00782 H TE 3120 00703 B SI 3120 00715 LIT 3120 00716 LIT 3120 00781 G TE 3120 00708 B XS LHS 3120 00781 H TI 3120 00704 B ZSHH 3120 00705 A ZSHH 3120 00783 H TE 3120 00704 A ZSH 3120 00715 A LI 3120 00784 HS J/SP 3120 00782 XA FAULT 3120 00716 LE 3120 00709 NA 3120 00706 A TE A TO H J, K RHS 3120 00713 B XE 3120 00704 B ZSH RHS 3120 00721 VE 3120 00722 LE 3120 00723 TE 3120 00713 A XE 3120 00705 A ZSH 3120 00722 LSL 3120 00703 A ST 3120 00721 VI 3120 00722 LA 3120 00713A XY 3120 00721 VT 3120 00723 TI 3120 00704 C ZSHH 3120 00708 A XS RHS 3120 00710 SE 3120 00706 A TI 3120 00713 B XY 3120 00713 XIH 3120 00732 LA 3120 00733 TI 3120 00731 VT 3120 00731 VE 3120 00733 TE 3120 00732 LE 3120 00732 LSL 3120 00731 VI 3120 00705 C ZSHH 3120 00741 VT 3120 00731 AI 3120 00741 VI 3120 00742 LA 3120 00743 TI 3120 00742 LE 3120 00743 TE 3120 00741 VE 3120 00704 B ZAHH 3120 00742 LSL 3120 00781 H TE 3120 00705 C ZSH LHS 3120 00782 H TI 3120 00702 HSS 3120 00782 G TI 3120 00783 G TE 3120 00705 B ZAHH 3120 00704 C ZSH RHS 3120 00704 A ZAH 3120 00782 G TE 3120 00705 C ZAHH 3120 00704 C ZAHH 3120 00705 B ZSH LHS 3120 00705 B ZAH 3120 00707 A TI 3120 00710 WE 3120 00783 G TI 3120 00701 HSA A-H LHS P1 3120 00715 LE 3120 00783 H TI 3120 00703 B SE 3120 00731 AT 3120 00784 XL FAULT 3120 00705 A ZAH 3120 00708 XA A,B P1 3120 00703 A SI 3120 00709 NS 3120 00784 II 3120 00781 G TI 3120 00703 B ST 3120 00704 C ZAH 3120 00705 B ZSHH 3120 00704 B ZAH 3120 00782 II 3120 00703 SDI H, P1 3120 00715 LI 3120 00707 A TE A TO H J, K LHS 3120 00710 WIT 3120 00716 LI H, P2 LL, P1 L,P2 3120 00704 A ZSHH 3120 00703 A SE 3120 00701 HSS FILTERED DUST PRIMARY CRUSHING DUST COLLECTOR ROTARY AIR 2871 3100-25J-005 PLANT AIR PLANT AIR RECEIVER, C2-3100-VS-002 3404 3100-25J-003 PRIM. CRUSHER SUMP DISCHARGE EVAPORATION POND 1897 PRIMARY CRUSHED ORE APRON FEEDER, C2-3110-FE-021 1835 3100-25J-005 FRESH WATER DISTRIBUTION 1898 5100-25J-014 C2-3110-HY-006 APRON FEEDER HYDRAULIC SYSTEM SPEED CONTROL 1902 3100-25J-005 A-H A-H A-H FAULT WRIM BRG REAR H, P2 HH, P1 RHS P1 P1 P2 TEAR BRG REAR H, P2 HH, P1 LOCK NO.2, C2-3110-ZV-020 CONTENTS WRIM A TO H J, K A TO H J, K BRG FRONT H, P2 HH, P1 RHS BRG FRONT H, P2 HH, P1 BRG REAR H, P2 HH, P1 H, P2 HH, P1 H, P2 HH, P1 P2 L, P2 IMAGE H, P2 HH, P1 L, P2 H, P2 HH, P1 H, P1 HH, P1 H, P2 H, P2 HH, P1 L, P2 H, P2 HH, P1 P2 P1 P1 RHS BRG FRONT H, P2 HH, P1 LHS P2 RHS P1 P1 LHS HH, P1 H, P2 WRIM NOTE 1 LHS P2 RHS P1 P2 H, P1 RHS P2 LHS NOTES: 1. INSTALL IN TUNNEL. SENSOR GUARD T5 T5 3120 00711 XA + C2-3120-MD-021 V V V V V V COARSE ORE STOCKPILE C2-3120-CV-022 V V V V V C2-3120-SL-002 V V 3"x2" 3120-WF- -C1A-2"-N C2-3110-PP-002 SIZE: 1,829m x 460m MOTOR: 2796.00 kW C2-3120-CV-022 COARSE ORE CONVEYOR NO.2 SIZE: C2-3120-ZE-003 CV-022 SENSOR GUARD BELT RIP DETECTOR V V ES V V T5 2"x3/4" V V V V ES V V ES ES 3120-AP-1026-C1A-2"-N 3120-WF-1084-C1A-3"-N V ES V ES 3120-AP-1026-C1A-2"-N SIZE: C2-3120-SL-002 CV-022 4-IDLER BELT SCALE SIZE: C2-3120-MD-021 CV-022 METAL DETECTOR ES SIZE: 100mm MATERIAL: MOTOR: 56.00 kW C2-3110-PP-002 PRIMARY CRUSHER CLEAN-UP PUMP NO.2 V ES V 3120-SL-1782-C1B-6"-N V ES ES AG GV LT ISSUED FOR CLIENT REVIEW 19-Dec-11 B RP ISSUED FOR COMBINED REVIEW 23-Jun-11 A 12/19/2011 G. VICENTIJEVIC A. GUNSON T. OH L. TAMELIN 12/19/2011 9:52:48 AM WBS: 3120 B PIPING AND INSTRUMENTATION DIAGRAM PRIMARY CRUSHING DISCHARGE 3100-25J-007 COARSE ORE CONVEYOR NO. 2 C2-3120-ZE-003 ES D 4 F B A 3 2 1 5 6 8 E 7 C REV. APPROVED CHK. DES. REV. DATE REVISION DESCRIPTION CLIENT LEAD ENGINEER SCALE DRAWING NUMBER CHECK DESIGN CHECK DRAWING DESIGNED BY DRAWN BY APPROVAL DATE APPROVAL DATE APPROVED CHK. DES. REV. DATE REVISION DESCRIPTION REFERENCE DRAWING No. 1:100 0 1:200 5m 10m 0 5m 10m 15m 20m 1:500 10m 0 20m 30m 40m 50m 1:1000 0 100m 50m 1:20 0 0.5m 1m 1.5m 2m 0 1:25 0.5m 1m 1.5m 1:33 1/3 2.5m 2m 0 1m 2m 3m 0 1:50 1m 2m 3m 4m 5m CAD FILE NAME: P:0CAD000SPEM** MODEL UPDATED: DWG. FILE UPDATED: MANUAL CHANGES MADE: YES NO YES NO YES NO PROJECT MANAGER ENGINEERING MANAGER AREA PROJECT ENGINEER REFERENCE DRAWINGS SAFETY SHARE: APPROVAL DATE CONTRACT NO. SAFETY SHARE : BA6CVA1.IGR NOTICE: THIS DRAWING HAS NOT BEEN PUBLISHED AND IS THE SOLE PROPERTY OF FLUOR AND IS LENT TO THE BORROWER FOR THEIR CONFIDENTIAL USE ONLY, AND IN CONSIDERATION OF THE LOAN OF THIS DRAWING, THE BORROWER PROMISES AND AGREES TO RETURN IT UPON REQUEST AND AGREES THAT IT WILL NOT BE REPRODUCED, COPIED LENT OR OTHERWISE DISPOSED OF DIRECTLY OR INDIRECTLY, NOR USED FOR ANY OTHER PURPOSE OTHER THAN WHICH IT IS FURNISHED. NONE Apr 2011 240K-C2- M HH, P1 H, P2 L, P2 LL, P1 3120 00719 FV + 3120 00719 FE + 3120 00719 FIC 3120 00719 FIT M HH, P1 H, P2 L, P2 LL, P1 3120 00718 FV + 3120 00718 FE + 3120 00718 FIC 3120 00718 FIT DUST PRIMARY CRUSHING DUST COLLECTOR NO.2, 3862 3100-25J-005 3120 00717 XV + 3120 00717 XA MISMATCH 3120 00717 ZS OP/CL
  • 13.
    T5 T5 3210 00101 HSA 3210 00113 A SI 3210 00102 B HSS RHS 3210 00103B ST 3210 00104 LSL 3210 00181 H TE 3210 00181 II 3210 00112 B HSS RHS 3210 00101 A HSS LHS 3210 00181 XA 3210 00113 B SI 3210 00114 LSL P1 3210 00101 B HSS LHS 3210 00105 A LSH 3210 00105 A LAH P1 3210 00114 LAL 3210 00113 B ST 3210 00181 HS 3210 00181 H TI BRG FRONT H, P2 HH, P1 3210 00181 G TE 3210 00181 G TI 3210 00103 A SE 3210 00113 A SE 3210 00103 B SE 3210 00105 B LSH 3210 00103 B SI 3210 00111 B HSS LHS 3210 00182 HS 3210 00182 H TI BRG FRONT H, P2 HH, P1 3210 00112 A HSS RHS 3210 00111 HSA 3210 00104 LAL P1 3210 00102 A HSS RHS 3210 00112 HSA RHS 3210 00105 B LAH P1 3210 00115 B LAH P1 3210 00113 A ST 3210 00115 B LSH 3210 00103 SDI H, P1 3210 00113 SDI H, P1 3210 00102 HSA 3210 00182 G TI 3210 00182 H TE 3210 00182 G TE 3210 00182 XA 3210 00182 II 3210 00103 A SI 3210 00113 B SE 3210 00111 A HSS LHS 3210 00103 A ST 3210 00115 A LSH 3210 00115 A LAH P1 DUST COARSE ORE RECLAIM DUST COLLECTOR NO. 1, 1800 3200-25J-007 PRIM. CRUSHER PRODUCT COARSE ORE RECLAIM CONVEYOR NO. 1, 1796 3200-25J-005 PRIM. CRUSHER PRODUCT COARSE ORE RECLAIM CONVEYOR NO. 1, 1797 3200-25J-005 C2-3210-CV-013 3200-WIC-00510 WEIGHT CONTROL, C2-3210-CV-013 1798 3200-25J-005 DUCTING P1 P1 P1 C2-3210-DC-016 C2-3210-CV-013 LHS RHS FAULT A AFD BRG REAR H, P2 HH, P1 BRG FRONT J/SP BRG REAR AFD BRG REAR BRG REAR H, P2 HH, P1 A BRG FRONT J/SP FAULT LHS P1 A,B A,B A,B A,B DUCTING DUCTING C2-3210-ST-030 AG KM LT ISSUED FOR CLIENT REVIEW 23-Dec-11 B RP ISSUED FOR COMBINED REVIEW 23-Jun-11 A 12/23/2011 K.MUNDY A. GUNSON T. OH L. TAMELIN 1/3/2012 1:01:06 PM WBS: 3210 B PIPING AND INSTRUMENTATION DIAGRAM COARSE ORE RECLAIM 3200-25J-001 COARSE ORE RECLAIM SHEET 1 OF 4 C2-3210-ST-012 C2-3210-ST-011 C2-3210-ST-025 C2-3210-FE-012 C2-3210-ST-031 C2-3210-FE-013 C2-3210-ST-026 V ES V SIZE: C2-3210-ST-026 COARSE ORE RECLAIM FEEDER DISCHARGE CHUTE SIZE: C2-3210-ST-011 STOCKPILE DISCHARGE CHUTE V V V SIZE: C2-3210-ST-031 APRON FEEDER DRIBBLE CHUTE ES V V ES ES V V SIZE: C2-3210-ST-030 APRON FEEDER DRIBBLE CHUTE V V ES V V V V V SIZE: C2-3210-ST-025 COARSE ORE RECLAIM FEEDER DISCHARGE CHUTE ES SIZE: C2-3210-ST-012 STOCKPILE DISCHARGE CHUTE ES ES ES ES 3210 00117 XA + 3210 00107 XA + SIZE: 1,829 mm MOTOR: 149.00 kW C2-3210-FE-012 COARSE ORE RECLAIM APRON FEEDER SIZE: 1,829 mm MOTOR: 149.00 kW C2-3210-FE-013 COARSE ORE RECLAIM APRON FEEDER D 4 F B A 3 2 1 5 6 8 E 7 C REV. APPROVED CHK. DES. REV. DATE REVISION DESCRIPTION CLIENT LEAD ENGINEER SCALE DRAWING NUMBER CHECK DESIGN CHECK DRAWING DESIGNED BY DRAWN BY APPROVAL DATE APPROVAL DATE APPROVED CHK. DES. REV. DATE REVISION DESCRIPTION REFERENCE DRAWING No. 1:100 0 1:200 5m 10m 0 5m 10m 15m 20m 1:500 10m 0 20m 30m 40m 50m 1:1000 0 100m 50m 1:20 0 0.5m 1m 1.5m 2m 0 1:25 0.5m 1m 1.5m 1:33 1/3 2.5m 2m 0 1m 2m 3m 0 1:50 1m 2m 3m 4m 5m CAD FILE NAME: P:0CAD000SPEM** MODEL UPDATED: DWG. FILE UPDATED: MANUAL CHANGES MADE: YES NO YES NO YES NO PROJECT MANAGER ENGINEERING MANAGER AREA PROJECTENGINEER REFERENCE DRAWINGS SAFETY SHARE: APPROVAL DATE CONTRACT NO. SAFETY SHARE : BA6CVA1.IGR NOTICE: THIS DRAWING HAS NOT BEEN PUBLISHED AND IS THE SOLE PROPERTY OF FLUOR AND IS LENT TO THE BORROWER FOR THEIR CONFIDENTIAL USE ONLY, AND IN CONSIDERATION OF THE LOAN OF THIS DRAWING, THE BORROWER PROMISES AND AGREES TO RETURN IT UPON REQUEST AND AGREES THAT IT WILL NOT BE REPRODUCED, COPIED LENT OR OTHERWISE DISPOSED OF DIRECTLY OR INDIRECTLY, NOR USED FOR ANY OTHER PURPOSE OTHER THAN WHICH IT IS FURNISHED. NONE Apr 2011 240K-C2-
  • 14.
    D 4 F B A 3 2 1 5 68 E 7 C REV. APPROVED CHK. DES. REV. DATE REVISION DESCRIPTION CLIENT LEAD ENGINEER SCALE DRAWING NUMBER CHECK DESIGN CHECK DRAWING DESIGNED BY DRAWN BY APPROVAL DATE APPROVAL DATE APPROVED CHK. DES. REV. DATE REVISION DESCRIPTION REFERENCE DRAWING No. 1:100 0 1:200 5m 10m 0 5m 10m 15m 20m 1:500 10m 0 20m 30m 40m 50m 1:1000 0 100m 50m 1:20 0 0.5m 1m 1.5m 2m 0 1:25 0.5m 1m 1.5m 1:33 1/3 2.5m 2m 0 1m 2m 3m 0 1:50 1m 2m 3m 4m 5m CAD FILE NAME: P:0CAD000SPEM** MODEL UPDATED: DWG. FILE UPDATED: MANUAL CHANGES MADE: YES NO YES NO YES NO PROJECT MANAGER ENGINEERING MANAGER AREA PROJECTENGINEER REFERENCE DRAWINGS SAFETY SHARE: APPROVAL DATE CONTRACT NO. SAFETY SHARE : BA6CVA1.IGR NOTICE: THIS DRAWING HAS NOT BEEN PUBLISHED AND IS THE SOLE PROPERTY OF FLUOR AND IS LENT TO THE BORROWER FOR THEIR CONFIDENTIAL USE ONLY, AND IN CONSIDERATION OF THE LOAN OF THIS DRAWING, THE BORROWER PROMISES AND AGREES TO RETURN IT UPON REQUEST AND AGREES THAT IT WILL NOT BE REPRODUCED, COPIED LENT OR OTHERWISE DISPOSED OF DIRECTLY OR INDIRECTLY, NOR USED FOR ANY OTHER PURPOSE OTHER THAN WHICH IT IS FURNISHED. NONE Apr 2011 240K-C2- LHS 3210 00203 SDI 3210 00203 A SI C2-3210-ST-014 LHS RHS 3210 00215 B LAH P1 P1 3210 00201 A HSS P1 3210 00205 B LAH P1 3210 00201 HSA 3210 00202 HSA 3210 00213 A SI 3210 00211 HSA P1 DUCTING RHS C2-3210-FE-015 3210 00212 HSA 3210 00215 B LSH P1 LHS RHS 3210 00213 B SE 3210 00211 A HSS C2-3210-ST-033 3210 00203 A SE RHS 3210 00212 A HSS LHS 3210 00211 B HSS 3210 00213 B SI LHS RHS 3210 00212 B HSS 3210 00213 B ST LHS C2-3210-ST-028 3210 00214 LAL C2-3210-ST-032 3210 00201 B HSS 3210 00214 LSL 3210 00203 B SE P1 3210 00203 B ST C2-3210-ST-013 C2-3210-FE-014 3210 00202 B HSS 3210 00203 A ST RHS 3210 00202 A HSS C2-3210-ST-027 3210 00205 B LSH H, P1 3210 00204 LSL 3210 00213 SDI 3210 00204 LAL 3210 00203 B SI 3210 00213 A ST P1 3210 00213 A SE H, P1 DUST COARSE ORE RECLAIM DUST COLLECTOR NO. 1, 1907 3200-25J-007 3210-WIC-00510 WEIGHT CONTROL, C2-3210-CV-013 1911 3200-25J-005 PRIM. CRUSHER PRODUCT COARSE ORE RECLAIM CONVEYOR NO. 1, 1801 3200-25J-005 PRIM. CRUSHER PRODUCT COARSE ORE RECLAIM CONVEYOR NO. 1, 1802 3200-25J-005 V V ES V ES ES SIZE: C2-3210-ST-014 STOCKPILE DISCHARGE CHUTE ES SIZE: C2-3210-ST-028 COARSE ORE RECLAIM FEEDER DISCHARGE CHUTE V ES V V V SIZE: C2-3210-ST-027 COARSE ORE RECLAIM FEEDER DISCHARGE CHUTE V SIZE: C2-3210-ST-013 STOCKPILE DISCHARGE CHUTE V ES V V SIZE: C2-3210-ST-032 APRON FEEDER DRIBBLE CHUTE V V V V SIZE: C2-3210-ST-033 APRON FEEDER DRIBBLE CHUTE V AG KM LT ISSUED FOR CLIENT REVIEW 23-Dec-11 B RP ISSUED FOR COMBINED REVIEW 23-Jun-11 A 12/23/2011 K.MUNDY A. GUNSON T. OH L. TAMELIN 12/23/2011 2:51:07 PM WBS: 3210 B PIPING AND INSTRUMENTATION DIAGRAM COARSE ORE RECLAIM 3200-25J-002 COARSE ORE RECLAIM SHEET 2 OF 4 P1 3210 00205 A LAH 3210 00205 A LSH 3210 00215 A LAH 3210 00215 A LSH P1 A, B A, B A, B A, B ES ES ES ES DUCTING DUCTING C2-3210-DC-016 C2-3210-CV-013 C2-3210-CV-013 BRG REAR 3210 00282 II 3210 00282 XA 3210 00217 XA + A FAULT 3210 00282 G TE 3210 00282 H TE 3210 00282 G TI 3210 00282 H TI AFD BRG FRONT H, P2 HH, P1 BRG REAR H, P2 HH, P1 3210 00282 HS J/SP BRG FRONT BRG REAR 3210 00281 II 3210 00281 XA 3210 00207 XA + A FAULT 3210 00281 G TE 3210 00281 H TE 3210 00281 G TI 3210 00281 H TI AFD BRG FRONT H, P2 HH, P1 BRG REAR H, P2 HH, P1 3210 00281 HS J/SP BRG FRONT T5 T5 SIZE: 1,829 mm MOTOR: 149.00 kW C2-3210-FE-014 COARSE ORE RECLAIM APRON FEEDER SIZE: 1,829mm MOTOR: 149.00 kW C2-3210-FE-015 COARSE ORE RECLAIM APRON FEEDER
  • 15.
    D 4 F B A 3 2 1 5 68 E 7 C REV. APPROVED CHK. DES. REV. DATE REVISION DESCRIPTION CLIENT LEAD ENGINEER SCALE DRAWING NUMBER CHECK DESIGN CHECK DRAWING DESIGNED BY DRAWN BY APPROVAL DATE APPROVAL DATE APPROVED CHK. DES. REV. DATE REVISION DESCRIPTION REFERENCE DRAWING No. 1:100 0 1:200 5m 10m 0 5m 10m 15m 20m 1:500 10m 0 20m 30m 40m 50m 1:1000 0 100m 50m 1:20 0 0.5m 1m 1.5m 2m 0 1:25 0.5m 1m 1.5m 1:33 1/3 2.5m 2m 0 1m 2m 3m 0 1:50 1m 2m 3m 4m 5m CAD FILE NAME: P:0CAD000SPEM** MODEL UPDATED: DWG. FILE UPDATED: MANUAL CHANGES MADE: YES NO YES NO YES NO PROJECT MANAGER ENGINEERING MANAGER AREA PROJECTENGINEER REFERENCE DRAWINGS SAFETY SHARE: APPROVAL DATE CONTRACT NO. SAFETY SHARE : BA6CVA1.IGR NOTICE: THIS DRAWING HAS NOT BEEN PUBLISHED AND IS THE SOLE PROPERTY OF FLUOR AND IS LENT TO THE BORROWER FOR THEIR CONFIDENTIAL USE ONLY, AND IN CONSIDERATION OF THE LOAN OF THIS DRAWING, THE BORROWER PROMISES AND AGREES TO RETURN IT UPON REQUEST AND AGREES THAT IT WILL NOT BE REPRODUCED, COPIED LENT OR OTHERWISE DISPOSED OF DIRECTLY OR INDIRECTLY, NOR USED FOR ANY OTHER PURPOSE OTHER THAN WHICH IT IS FURNISHED. NONE Apr 2011 240K-C2- 3210 00305 B LAH P1 3210 00314 LSL 3210 00314 LAL 3210 00312 B HSS RHS 3210 00311 B HSS LHS 3210 00312 A HSS RHS 3210 00311 A HSS LHS 3210 00313 A SE 3210 00313 A ST 3210 00313 SDI H, P1 3210 00315 B LSH 3210 00315 B LAH P1 3210 00313 B SE 3210 00313 B ST 3210 00303 A SE 3210 00303 SDI H, P1 3210 00304 LAL 3210 00304 LSL 3210 00301 A HSS LHS 3210 00305 B LSH 3210 00302 A HSS RHS 3210 00303 A ST 3210 00302 B HSS RHS 3210 00303 B ST 3210 00303 B SE 3210 00301 B HSS LHS C2-3210-FE-022 C2-3210-ST-017 C2-3210-ST-043 C2-3210-ST-021 C2-3210-FE-023 C2-3210-ST-018 C2-3210-ST-022 LP1 LP1 DUCTING 3210 00302 HSA 3210 00301 HSA P1 P1 RHS LHS 3210 00303 A SI 3210 00303 B SI 3210 00312 HSA 3210 00311 HSA RHS LHS P1 P1 3210 00313 B SI 3210 00313 A SI C2-3210-ST-044 DUST COARSE ORE RECLAIM DUST COLLECTOR NO. 2, 1917 3200-25J-007 PRIM. CRUSHER PRODUCT COARSE ORE RECLAIM CONVEYOR NO. 2, 1918 3200-25J-006 PRIM. CRUSHER PRODUCT COARSE ORE RECLAIM CONVEYOR NO. 2, 1919 3200-25J-006 3210-WIC-00610 WEIGHT CONTROL, C2-3210-CV-023 1920 3200-25J-006 SIZE: C2-3210-ST-017 STOCKPILE DISCHARGE CHUTE SIZE: C2-3210-ST-043 APRON FEEDER DRIBBLE CHUTE SIZE: C2-3210-ST-021 COARSE ORE RECLAIM FEEDER DISCHARGE CHUTE SIZE: C2-3210-ST-018 STOCKPILE DISCHARGE CHUTE SIZE: C2-3210-ST-044 APRON FEEDER DRIBBLE CHUTE SIZE: C2-3210-ST-022 COARSE ORE RECLAIM FEEDER DISCHARGE CHUTE V V ES V V V V V ES V V V ES ES V V ES V V V ES V AG KM LT ISSUED FOR CLIENT REVIEW 23-Dec-11 B RP ISSUED FOR COMBINED REVIEW 23-Jun-11 A 12/23/2011 K.MUNDY A. GUNSON T. OH L. TAMELIN 12/21/2011 10:45:18 AM WBS: 3210 B PIPING AND INSTRUMENTATION DIAGRAM COARSE ORE RECLAIM 3200-25J-003 COARSE ORE RECLAIM SHEET 3 OF 4 3210 00305 A LAH P1 3210 00305 A LSH 3210 00315 A LSH 3210 00315 A LAH P1 A, B A, B A, B A, B ES ES ES ES DUCTING DUCTING C2-3210-DC-017 C2-3210-CV-023 C2-3210-CV-023 BRG REAR 3210 00382 II 3210 00382 XA 3210 00317 XA + A FAULT 3210 00382 G TE 3210 00382 H TE 3210 00382 G TI 3210 00382 H TI AFD BRG FRONT H, P2 HH, P1 BRG REAR H, P2 HH, P1 3210 00382 HS J/SP BRG FRONT BRG REAR 3210 00381 II 3210 00381 XA 3210 00307 XA + A FAULT 3210 00381 G TE 3210 00381 H TE 3210 00381 G TI 3210 00381 H TI AFD BRG FRONT H, P2 HH, P1 BRG REAR H, P2 HH, P1 3210 00381 HS J/SP BRG FRONT T5 T5 SIZE: 1,829 mm MOTOR: 149.00 kW C2-3210-FE-022 COARSE ORE RECLAIM APRON FEEDER SIZE: 1,829mm MOTOR: 149.00 kW C2-3210-FE-023 COARSE ORE RECLAIM APRON FEEDER
  • 16.
    D 4 F B A 3 2 1 5 68 E 7 C REV. APPROVED CHK. DES. REV. DATE REVISION DESCRIPTION CLIENT LEAD ENGINEER SCALE DRAWING NUMBER CHECK DESIGN CHECK DRAWING DESIGNED BY DRAWN BY APPROVAL DATE APPROVAL DATE APPROVED CHK. DES. REV. DATE REVISION DESCRIPTION REFERENCE DRAWING No. 1:100 0 1:200 5m 10m 0 5m 10m 15m 20m 1:500 10m 0 20m 30m 40m 50m 1:1000 0 100m 50m 1:20 0 0.5m 1m 1.5m 2m 0 1:25 0.5m 1m 1.5m 1:33 1/3 2.5m 2m 0 1m 2m 3m 0 1:50 1m 2m 3m 4m 5m CAD FILE NAME: P:0CAD000SPEM** MODEL UPDATED: DWG. FILE UPDATED: MANUAL CHANGES MADE: YES NO YES NO YES NO PROJECT MANAGER ENGINEERING MANAGER AREA PROJECTENGINEER REFERENCE DRAWINGS SAFETY SHARE: APPROVAL DATE CONTRACT NO. SAFETY SHARE : BA6CVA1.IGR NOTICE: THIS DRAWING HAS NOT BEEN PUBLISHED AND IS THE SOLE PROPERTY OF FLUOR AND IS LENT TO THE BORROWER FOR THEIR CONFIDENTIAL USE ONLY, AND IN CONSIDERATION OF THE LOAN OF THIS DRAWING, THE BORROWER PROMISES AND AGREES TO RETURN IT UPON REQUEST AND AGREES THAT IT WILL NOT BE REPRODUCED, COPIED LENT OR OTHERWISE DISPOSED OF DIRECTLY OR INDIRECTLY, NOR USED FOR ANY OTHER PURPOSE OTHER THAN WHICH IT IS FURNISHED. NONE Apr 2011 240K-C2- 3210 00405 B LAH P1 3210 00414 LSL 3210 00414 LAL 3210 00412 B HSS RHS 3210 00411 B HSS LHS 3210 00412 A HSS RHS 3210 00411 A HSS LHS 3210 00413 A SE 3210 00413 A ST 3210 00413 SDI H, P1 3210 00415 B LSH 3210 00415 B LAH P1 3210 00413 B SE 3210 00413 B ST 3210 00403 A SE 3210 00403 SDI H, P1 3210 00404 LAL 3210 00404 LSL 3210 00401 A HSS LHS 3210 00405 B LSH 3210 00402 A HSS RHS 3210 00403 A ST 3210 00402 B HSS RHS 3210 00403 B ST 3210 00403 B SE 3210 00401 B HSS LHS C2-3210-FE-024 C2-3210-ST-019 C2-3210-ST-045 C2-3210-ST-023 C2-3210-FE-025 C2-3210-ST-020 C2-3210-ST-024 P1 P1 DUCTING 3210 00402 HSA 3210 00401 HSA P1 P1 RHS LHS 3210 00403 A SI 3210 00403 B SI 3210 00412 HSA 3210 00411 HSA RHS LHS P1 P1 3210 00413 B SI 3210 00413 A SI C2-3210-ST-046 DUST COARSE ORE RECLAIM DUST COLLECTOR NO.2, 1921 3200-25J-007 PRIM. CRUSHER PRODUCT COARSE ORE RECLAIM CONVEYOR NO.2, 1922 3200-25J-006 PRIM. CRUSHER PRODUCT COARSE ORE RECLAIM CONVEYOR NO.2, 1923 3200-25J-006 3210-WIC-00610 WEIGHT CONTROL, C2-3210-CV-023 1925 3200-25J-006 SIZE: C2-3210-ST-019 STOCKPILE DISCHARGE CHUTE SIZE: C2-3210-ST-045 APRON FEEDER DRIBBLE CHUTE SIZE: C2-3210-ST-023 COARSE ORE RECLAIM FEEDER DISCHARGE CHUTE SIZE: C2-3210-ST-024 COARSE ORE RECLAIM FEEDER DISCHARGE CHUTE SIZE: C2-3210-ST-046 APRON FEEDER DRIBBLE CHUTE SIZE: C2-3210-ST-020 STOCKPILE DISCHARGE CHUTE ES V V V V V V ES V ES V V V V ES V V ES ES V V V AG KM LT ISSUED FOR CLIENT REVIEW 23-Dec-11 B RP ISSUED FOR COMBINED REVIEW 23-Jun-11 A 12/23/2011 K.MUNDY A. GUNSON T. OH L. TAMELIN 12/23/2011 2:55:55 PM WBS: 3210 B PIPING AND INSTRUMENTATION DIAGRAM COARSE ORE RECLAIM 3200-25J-004 COARSE ORE RECLAIM SHEET 4 OF 4 3210 00405 A LAH P1 3210 00405 A LSH 3210 00415 A LSH 3210 00415 A LAH P1 A, B A, B A, B A, B ES ES ES ES DUCTING DUCTING C2-3210-DC-017 C2-3210-CV-023 C2-3210-CV-023 BRG REAR 3210 00482 II 3210 00482 XA 3210 00417 XA + A TO ? FAULT 3210 00482 G TE 3210 00482 H TE 3210 00482 G TI 3210 00482 H TI AFD BRG FRONT H, P2 HH, P1 BRG REAR H, P2 HH, P1 3210 00482 HS J/SP BRG FRONT BRG REAR 3210 00481 II 3210 00481 XA 3210 00407 XA + A FAULT 3210 00481 G TE 3210 00481 H TE 3210 00481 G TI 3210 00481 H TI AFD BRG FRONT H, P2 HH, P1 BRG REAR H, P2 HH, P1 3210 00481 HS J/SP BRG FRONT T5 T5 SIZE: 1,829 mm MOTOR: 149.00 kW C2-3210-FE-024 COARSE ORE RECLAIM APRON FEEDER SIZE: 1,829 mm MOTOR: 149.00 kW C2-3210-FE-025 COARSE ORE RECLAIM APRON FEEDER
  • 17.
    GEAR REDUCER GEAR REDUCER GEAR REDUCER J-M J-M LHS D, E T8 3210 00513 A XY 3210 00513 XI 3210 00513B XE 3210 00513 A XE 3210 00513 B XY 3210 00503 B ST 3210 00503 B SI 3210 00503 B SE 3210 00503 SDI H, P1 3210 00525 FIC HH, P1 H, P2 L, P2 LL, P1 3210 00525 FIT M 3210 00508 XA A,B 3210 00582 G TE 3210 00508 A XS 3210 00585 XA 3210 00510 SE 3210 00509 NS 3210 00516 LE 3210 00510 WIT 3210 00581 G TE 3210 00502 HSA RHS J-M 3210 00583 G TI 3210 00507 A TE 3210 00583 H TI BRG REAR H, P2 HH, P1 3210 00583 XA 3210 00583 II 3210 00583 G TE 3210 00516 LIT 3210 00582 H TI BRG REAR H, P2 HH, P1 3210 00521 SSL 3210 00504 ZSHH D, E 3210 00502 HSS RHS 3210 00502 HSA P1 3210 00515 B LAH 3210 00501 HSA 3210 00504 ZSH 3210 00581 H TI BRG REAR H, P2 HH, P1 3210 00584 II 3210 00504 ZSH LHS 3210 00508 B XS RHS 3210 00510 WE 3210 00504 ZAH 3210 00505 ZAHH 3210 00505 ZSH RHS 3210 00504 ZAH 3210 00582 H TE 3210 00515 A LAH 3210 00515 A LSH 3210 00582 XA 3210 00515 B LSH 3210 00510 WIC 3210 00583 H TE 3210 00584 HS 3210 00505 ZA RHS 3210 00502 HSS RHS 3210 00501 HSS 3210 00522 ZSH 3210 00507 A TI H, P2 HH, P1 RHS 3210 00504 ZAHH 3210 00581 H TE 3210 00584 XA 3210 00521 SE 3210 00505 ZAHH 3210 00503 A SE 3210 00581 II 3210 00581 XA 3210 00504 ZSHH 3210 00521 SAL P1 3210 00506 A TE 3210 00585 II 3210 00505 ZAH 3210 00516 LI 3210 00581 G TI 3210 00505 ZSHH 3210 00505 ZSH RHS 3210 00522 ZAH P2 3210 00509 NA 3210 00585 HS J/SP 3210 00503 A ST 3210 00506 A TI 3210 00503 A SI 3210 00582 II 3210 00501 HSA 3210 00501 HSS LHS 3210 00504 ZA LHS 3210 00505 ZSHH 3210 00582 G TI WRIM FRESH WATER DISTRIBUTION 3419 5100-25J-014 COARSE ORE AREA SUMP EVAPORATION POND 3657 CO. RECLA. APRON FEEDER WEIGHT CONTROL, C2-3210-FE-014/015 1911 3200-25J-002 PRIM. CRUSHER PRODUCT SECONDARY CRUSHER DISCHARGE CONVEYOR NO.1, 1366 3200-25J-045 CO. RECLA. APRON FEEDER WEIGHT CONTROL, C2-3210-FE-012/013 1798 3200-25J-001 PRIM. CRUSHER PRODUCT COARSE ORE RECLAIM APRON FEEDER, 1802 3200-25J-002 PRIM. CRUSHER PRODUCT COARSE ORE RECLAIM APRON FEEDER, 1801 3200-25J-002 DUST DUST COLLECTOR, C2-3320-DC-123 3420 3200-25J-047 PRIM. CRUSHER PRODUCT COARSE ORE RECLAIM APRON FEEDER, 1796 3200-25J-001 PRIM. CRUSHER PRODUCT COARSE ORE RECLAIM APRON FEEDER, 1797 3200-25J-001 C2-3210-FE-013 FAULT H1, P2 C2-3210-FE-014 C2-3210-FE-012 C2-3210-FE-015 FAULT D, E FAULT LHS P1 P1 P2 A-C P1 LHS RHS A TO N FAULT H, P2 LL, P1 L, P2 P1 RHS A-H FAULT P2 BRG FRONT H, P2 HH, P1 C2-3220-CV-016 P1 A-H BRG FRONT H, P2 HH, P1 LHS A-C H, P2 HH, P1 LHS A-C TEAR A-H P1 RHS J-M LHS D, E P2 P1 WRIM A-H LHS BRG FRONT H, P2 HH, P1 WRIM J/SP LHS P1 P1 P2 A-C SIZE: MATERIAL: MOTOR: C2-3210-PP-011 COARSE ORE RECLAIM SUMP PUMP C2-3210-MD-003 AG KM LT ISSUED FOR CLIENT REVIEW 23-Dec-11 B RP ISSUED FOR COMBINED REVIEW 23-Jun-11 A 12/23/2011 K.MUNDY A. GUNSON T. OH L. TAMELIN 1/3/2012 1:04:34 PM WBS: 3210 B PIPING AND INSTRUMENTATION DIAGRAM COARSE ORE RECLAIM 3200-25J-005 COARSE ORE RECLAIM CONVEYOR NO. 1 T5 SIZE: C2-3210-ST-040 COARSE ORE RECLAIM CONVEYOR NO.1 HEAD CHUTE C2-3210-ST-065 T5 C2-3210-FA-011 C2-3210-FA-012 SIZE: MOTOR: C2-3210-FA-011 RECLAIM TUNNEL FAN SIZE: MOTOR: C2-3210-FA-012 RECLAIM TUNNEL TRANSFER FAN ES T5 C2-3210-MA-003 C2-3210-ST-040 C2-3210-CV-013 SIZE: C2-3210-MD-003 CV-013 METAL DETECTOR C2-3210-BN-009 SIZE: MATERIAL: MOTOR: C2-3210-CV-013 COARSE ORE RECLAIM CONVEYOR NO.1 V V V V V V C2-3210-PP-011 SIZE: C2-3210-ST-065 CV-013 TRAMP METAL CHUTE 3210-SL-1001-C1B-6"-N SIZE: C2-3210-MA-003 CV-013 SELF CLEANING MAGNET 3210 00511 XA + C2-3210-SL-003 V V V V SIZE: C2-3210-SL-003 CV-013 4-IDLER BELT SCALE ES SIZE: MATERIAL: CAPACITY: TRIM: C2-3210-BN-009 CV-013 TRAMP METAL BIN V V V V ES V ES ES V V V ES V 3210 00525 FV + 3210 00525 FE + ES C2-3210-ZE-004 D 4 F B A 3 2 1 5 6 8 E 7 C REV. APPROVED CHK. DES. REV. DATE REVISION DESCRIPTION CLIENT LEAD ENGINEER SCALE DRAWING NUMBER CHECK DESIGN CHECK DRAWING DESIGNED BY DRAWN BY APPROVAL DATE APPROVAL DATE APPROVED CHK. DES. REV. DATE REVISION DESCRIPTION REFERENCE DRAWING No. 1:100 0 1:200 5m 10m 0 5m 10m 15m 20m 1:500 10m 0 20m 30m 40m 50m 1:1000 0 100m 50m 1:20 0 0.5m 1m 1.5m 2m 0 1:25 0.5m 1m 1.5m 1:33 1/3 2.5m 2m 0 1m 2m 3m 0 1:50 1m 2m 3m 4m 5m CAD FILE NAME: P:0CAD000SPEM** MODEL UPDATED: DWG. FILE UPDATED: MANUAL CHANGES MADE: YES NO YES NO YES NO PROJECT MANAGER ENGINEERING MANAGER AREA PROJECTENGINEER REFERENCE DRAWINGS SAFETY SHARE: APPROVAL DATE CONTRACT NO. SAFETY SHARE : BA6CVA1.IGR NOTICE: THIS DRAWING HAS NOT BEEN PUBLISHED AND IS THE SOLE PROPERTY OF FLUOR AND IS LENT TO THE BORROWER FOR THEIR CONFIDENTIAL USE ONLY, AND IN CONSIDERATION OF THE LOAN OF THIS DRAWING, THE BORROWER PROMISES AND AGREES TO RETURN IT UPON REQUEST AND AGREES THAT IT WILL NOT BE REPRODUCED, COPIED LENT OR OTHERWISE DISPOSED OF DIRECTLY OR INDIRECTLY, NOR USED FOR ANY OTHER PURPOSE OTHER THAN WHICH IT IS FURNISHED. NONE Apr 2011 240K-C2- FILTERED DUST DUST COLLECTOR, C2-3210-DC-016 3421 3200-25J-007 ES 3210 00522 ZSHH 3210 00522 ZAHH V P1 T1 A,B A,B A,B A,B 3 X 597 = 1791 KW 3210 00521 VI 3210 00522 LA 3210 00523 TI 3210 00521 VT 3210 00521 VE 3210 00522 LSL 3210 00522 LE 3210 00523 TE 3210 00531 VI 3210 00532 LA 3210 00533 TI 3210 00531 VT 3210 00531 VE 3210 00532 LSL 3210 00532 LE 3210 00533 TE 3210 00541 VI 3210 00542 LA 3210 00543 TI 3210 00541 VT 3210 00541 VE 3210 00542 LSL 3210 00542 LE 3210 00543 TE CONTENTS SIZE: C2-3210-ZE-004 CV-013 SENSOR GUARD BELT RIP DETECTOR ES ES ES V V V V V V V V V V V V V V V H, P2 HH, P1 L, P2 H, P2 HH, P1 H, P2 HH, P1 H, P2 HH, P1 L, P2 L, P2 H, P2 HH, P1 H, P2 HH, P1 D, E D, E A-C A-C A-F A-F A F E D C B
  • 18.
    D 4 F B A 3 2 1 5 68 E 7 C REV. APPROVED CHK. DES. REV. DATE REVISION DESCRIPTION CLIENT LEAD ENGINEER SCALE DRAWING NUMBER CHECK DESIGN CHECK DRAWING DESIGNED BY DRAWN BY APPROVAL DATE APPROVAL DATE APPROVED CHK. DES. REV. DATE REVISION DESCRIPTION REFERENCE DRAWING No. 1:100 0 1:200 5m 10m 0 5m 10m 15m 20m 1:500 10m 0 20m 30m 40m 50m 1:1000 0 100m 50m 1:20 0 0.5m 1m 1.5m 2m 0 1:25 0.5m 1m 1.5m 1:33 1/3 2.5m 2m 0 1m 2m 3m 0 1:50 1m 2m 3m 4m 5m CAD FILE NAME: P:0CAD000SPEM** MODEL UPDATED: DWG. FILE UPDATED: MANUAL CHANGES MADE: YES NO YES NO YES NO PROJECT MANAGER ENGINEERING MANAGER AREA PROJECTENGINEER REFERENCE DRAWINGS SAFETY SHARE: APPROVAL DATE CONTRACT NO. SAFETY SHARE : BA6CVA1.IGR NOTICE: THIS DRAWING HAS NOT BEEN PUBLISHED AND IS THE SOLE PROPERTY OF FLUOR AND IS LENT TO THE BORROWER FOR THEIR CONFIDENTIAL USE ONLY, AND IN CONSIDERATION OF THE LOAN OF THIS DRAWING, THE BORROWER PROMISES AND AGREES TO RETURN IT UPON REQUEST AND AGREES THAT IT WILL NOT BE REPRODUCED, COPIED LENT OR OTHERWISE DISPOSED OF DIRECTLY OR INDIRECTLY, NOR USED FOR ANY OTHER PURPOSE OTHER THAN WHICH IT IS FURNISHED. NONE Apr 2011 240K-C2- PRIM. CRUSHER PRODUCT COARSE ORE RECLAIM APRON FEEDER, 1919 3200-25J-003 PRIM. CRUSHER PRODUCT COARSE ORE RECLAIM APRON FEEDER, 1918 3200-25J-003 PRIM. CRUSHER PRODUCT COARSE ORE RECLAIM APRON FEEDER, 1923 3200-25J-004 PRIM. CRUSHER PRODUCT COARSE ORE RECLAIM APRON FEEDER, 1922 3200-25J-004 CO. RECLA. APRON FEEDER WEIGHT CONTROL, C2-3210-FE-022/023 1920 3200-25J-003 CO. RECLA. APRON FEEDER WEIGHT CONTROL, C2-3210-FE-024/025 1925 3200-25J-004 PRIM. CRUSHER PRODUCT SECONDARY CRUSHER DISCHARGE CONVEYOR NO.2, 1933 3200-25J-046 AG KM LT ISSUED FOR CLIENT REVIEW 23-Dec-11 B RP ISSUED FOR COMBINED REVIEW 23-Jun-11 A 12/23/2011 K.MUNDY A. GUNSON T. OH L. TAMELIN 1/3/2012 1:05:22 PM WBS: 3210 B PIPING AND INSTRUMENTATION DIAGRAM COARSE ORE RECLAIM 3200-25J-006 COARSE ORE RECLAIM CONVEYOR NO. 2 COARSE ORE AREA SUMP EVAPORATION POND. 3230 FRESH WATER DISTRIBUTION 3423 5100-25J-014 DUST DUST COLLECTOR, C2-3220-DC-153 3424 3200-25J-047 3210 00681 G TE C2-3210-FA-014 3210 00610 WIT 3210 00606 A TI C2-3210-FA-013 3210 00616 LE 3210 00603 A ST 3210 00609 NS 3210 00610 SE J/SP T5 3210 00685 XA 3210 00685 HS C2-3210-ST-066 3210 00508 A XS 3210 00609 NA SIZE: C2-3210-ST-049 COARSE ORE RECLAIM CONVEYOR NO.2 HEAD CHUTE P2 T5 3210 00622 ZAH 3210 00682 G TE RHS A,B 3210 00605 ZSH C2-3210-MD-004 3210 00508 XA 3210 00605 ZSHH SIZE: MATERIAL: MOTOR: C2-3210-PP-012 COARSE ORE RECLAIM SUMP PUMP H, P1 3210 00681 G TI P2 A-C 3210 00603 SDI 3210 00616 LI P1 3210 00603 B SE 3210 00605 ZAH P1 3210 00603 B SI 3210 00685 II LHS 3210 00603 B ST 3210 00606 A TE J/SP P1 WRIM 3210 00621 SAL BRG FRONT H, P2 HH, P1 3210 00604 ZSHH A-H LHS 3210 00681 XA WRIM 3210 00681 II P1 3210 00603 A SE P2 V 3210 00605 ZAHH D, E ES 3210 00621 SE J-M LHS V 3210 00684 XA RHS V 3210 00681 H TE P1 V A-H ES TEAR ES 3210 00604 ZAHH A-C V 3210 00607 A TI 3210 00622 ZSH ES 3210 00601 HSS H, P2 HH, P1 LHS RHS A-C V 3210 00602 HSS LHS V 3210 00613 B XY RHS BRG FRONT H, P2 HH, P1 V 3210 00605 ZA V 3210 00684 HS A-H 3210 00683 H TE P1 SIZE: MATERIAL: CAPACITY: TRIM: C2-3210-BN-004 CV-023 TRAMP METAL BIN 3210 00610 WIC C2-3220-CV-026 ES 3210 00615 B LSH SIZE: C2-3210-SL-004 CV-023 4-IDLER BELT SCALE 3210 00682 XA BRG FRONT H, P2 HH, P1 V 3210 00615 A LSH P2 V 3210 00615 A LAH FAULT V 3210 00682 H TE RHS A-H V 3210 00604 ZAH P1 3210 00613 A XE RHS H, P2 LL, P1 L, P2 3210 00613 B XE 3210 00605 ZSH FAULT C2-3210-SL-004 3210 00613 XI 3210 00605 ZAHH A TO N 3210 00613 A XY 3210 00604 ZAH RHS 3210 00611 XA + 3210 00610 WE LHS SIZE: C2-3210-MA-004 CV-023 SELF CLEANING MAGNET RHS P1 3210 00508 B XS P2 A-C 3210-SL-1002-C1B-6"-N LHS P1 SIZE: C2-3210-ST-066 CV-023 TRAMP METAL CHUTE 3210 00604 ZSH P1 3210 00684 II LHS C2-3210-PP-012 T8 BRG REAR H, P2 HH, P1 FAULT V 3210 00681 H TI D, E V GEAR REDUCER D, E 3210 00604 ZSH FAULT V GEAR REDUCER LHS 3210 00601 HSA V GEAR REDUCER J-M 3210 00615 B LAH H1, P2 V J-M V P1 E 3210 00602 HSA RHS 3210 00602 HSS SIZE: MATERIAL: MOTOR: C2-3210-CV-023 COARSE ORE RECLAIM CONVEYOR NO.2 C2-3210-BN-004 D, E 3210 00604 ZSHH 3210 00621 SSL BRG REAR H, P2 HH, P1 FAULT SIZE: C2-3210-MD-004 CV-023 METAL DETECTOR 3210 00682 H TI WRIM C2-3210-CV-023 3210 00616 LIT 3210 00682 G TI 3210 00683 G TE 3210 00605 ZSHH C2-3210-ST-049 3210 00683 II LHS 3210 00683 XA 3210 00604 ZA C2-3210-MA-004 BRG REAR H, P2 HH, P1 LHS T5 3210 00683 H TI 3210 00601 HSS ES 3210 00607 A TE 3210 00601 HSA 3210 00683 G TI 3210 00682 II SIZE: MOTOR: C2-3210-FA-014 RECLAIM TUNNEL TRANSFER FAN RHS J-M 3210 00603 A SI SIZE: MOTOR: C2-3210-FA-013 RECLAIM TUNNEL FAN 3210 00602 HSA C2-3210-FE-022 C2-3210-FE-023 C2-3210-FE-024 C2-3210-FE-025 FILTERED DUST DUST COLLECTOR, C2-3210-DC-017 3422 3200-25J-007 3210 00625 FIC HH, P1 H, P2 L, P2 LL, P1 3210 00625 FIT M 3210 00625 FV + 3210 00625 FE + ES C2-3210-ZE-005 SIZE: C2-3210-ZE-005 CV-023 SENSOR GUARD BELT RIP DETECTOR T1 3210 00622 ZSHH 3210 00622 ZAHH V P1 A,B A,B A,B A,B 3210 00621 VI 3210 00622 LA 3210 00623 TI 3210 00621 VT 3210 00621 VE 3210 00622 LSL 3210 00622 LE 3210 00623 TE 3210 00631 VI 3210 00632 LA 3210 00633 TI 3210 00631 VT 3210 00631 VE 3210 00632 LSL 3210 00632 LE 3210 00633 TE 3210 00641 VI 3210 00642 LA 3210 00643 TI 3210 00641 VT 3210 00641 VE 3210 00642 LSL 3210 00642 LE 3210 00643 TE V V V V V H, P2 HH, P1 L, P2 H, P2 HH, P1 H, P2 HH, P1 L, P2 H, P2 HH, P1 H, P2 HH, P2 L, P2 H, P2 HH, P1 CONTENTS 3 X 597 = 1791 KW ES ES ES ES V V V V V V V V V V D, E D, E A-C A-C F C D B A-F A-F A
  • 19.
    M M VENDOR VENDOR 3240 00793 II 3240 00792 HS 3240 00792 XA 3240 00783 II 3240 00793 XA 3240 00782 XA 3240 00782 II 3240 00792 II 3240 00783 XA 3240 00783 HS ST/SP 3240 00793 HS ST/SP 3240 00782 HS FILTERED DUST COARSE ORERECLAIM CONVEYOR NO.2, 3422 3200-25J-006 DUST DUST CONTROL POINTS 2938 3200-25J-001 DUST DUST CONTROL POINTS 2939 3200-25J-002 PLANT AIR 2940 3200-25J-017 DUST DUST CONTROL POINTS 2941 3200-25J-003 DUST DUST CONTROL POINTS 2942 3200-25J-004 FILTERED DUST COAUSE ORE RECLAIM CONVEYOR NO.1, 3421 3200-25J-005 ST/SP C2-3210-CV-013 C2-3210-CV-023 FAULT FAULT ST/SP FAULT FAULT 3210-AP-1032-C1A-2"-N TO ATMOSPHERE SIZE: MATERIAL: MOTOR: C2-3210-FA-016 COARSE ORE RECLAIM DUST COLLECTOR FAN NO. 1 C2-3210-ZV-081 3210-AP-1073-C1A-2"-N SIZE: MOTOR: C2-3210-ZV-081 COARSE ORE RECLAIM DUST COLLECTOR ROTARY VALVE NO. 2 AG KM LT ISSUED FOR CLIENT REVIEW 23-Dec-11 B RP ISSUED FOR COMBINED REVIEW 13-Jul-11 A 12/23/2011 K.MUNDY A. GUNSON T. OH L. TAMELIN 12/21/2011 10:48:46 AM WBS: 3210 B PIPING AND INSTRUMENTATION DIAGRAM COARSE ORE RECLAIM 3200-25J-007 COARSE ORE RECLAIM DUST CONTROLS C2-3210-ZV-080 C2-3210-DC-017 C2-3210-DC-016 SIZE: C2-3210-DC-016 COARSE ORE RECLAIM DUST COLLECTOR NO.1 C2-3210-FA-016 TO ATMOSPHERE SIZE: C2-3210-DC-017 COARSE ORE RECLAIM DUST COLLECTOR NO. 2 C2-3210-FA-017 SIZE: MATERIAL: MOTOR: C2-3210-FA-017 COARSE ORE RECLAIM DUST COLLECTOR FAN NO. 2 SIZE: MOTOR: C2-3210-ZV-080 COARSE ORE RECLAIM DUST COLLECTOR ROTARY VALVE NO. 1 D 4 F B A 3 2 1 5 6 8 E 7 C REV. APPROVED CHK. DES. REV. DATE REVISION DESCRIPTION CLIENT LEAD ENGINEER SCALE DRAWING NUMBER CHECK DESIGN CHECK DRAWING DESIGNED BY DRAWN BY APPROVAL DATE APPROVAL DATE APPROVED CHK. DES. REV. DATE REVISION DESCRIPTION REFERENCE DRAWING No. 1:100 0 1:200 5m 10m 0 5m 10m 15m 20m 1:500 10m 0 20m 30m 40m 50m 1:1000 0 100m 50m 1:20 0 0.5m 1m 1.5m 2m 0 1:25 0.5m 1m 1.5m 1:33 1/3 2.5m 2m 0 1m 2m 3m 0 1:50 1m 2m 3m 4m 5m CAD FILE NAME: P:0CAD000SPEM** MODEL UPDATED: DWG. FILE UPDATED: MANUAL CHANGES MADE: YES NO YES NO YES NO PROJECT MANAGER ENGINEERING MANAGER AREA PROJECTENGINEER REFERENCE DRAWINGS SAFETY SHARE: APPROVAL DATE CONTRACT NO. SAFETY SHARE : BA6CVA1.IGR NOTICE: THIS DRAWING HAS NOT BEEN PUBLISHED AND IS THE SOLE PROPERTY OF FLUOR AND IS LENT TO THE BORROWER FOR THEIR CONFIDENTIAL USE ONLY, AND IN CONSIDERATION OF THE LOAN OF THIS DRAWING, THE BORROWER PROMISES AND AGREES TO RETURN IT UPON REQUEST AND AGREES THAT IT WILL NOT BE REPRODUCED, COPIED LENT OR OTHERWISE DISPOSED OF DIRECTLY OR INDIRECTLY, NOR USED FOR ANY OTHER PURPOSE OTHER THAN WHICH IT IS FURNISHED. NONE Apr 2011 240K-C2- 3210 00701 PDAH 3210 00711 PDAH
  • 20.
    TEAR FEEDER AFD DRIVE 3240 01105 ZAH 3240 01104 ZAH 3240 01105 ZSH 3240 01104 ZSH 3240 01117 LAL 3240 01104 ZAHH 3240 01108A XS 3240 01103 A SI 3240 01117 LSL 3240 01110 WI 3240 01102 HSS RHS 3240 01101 HSA 3240 01105 ZSHH 3240 01104 ZSHH 3240 01110 WE LHS 3240 01108 XA P1 3240 01110 SE 3240 01108 B XA 3240 01103 B ST 3240 01103 SDI 3240 01103 A SE 3240 01107 B TI 3240 01101 HSS 3240 31181 H TE BRG FRONT 3240 31181 G TE BRG REAR 3240 01103 B SI 3240 01106 A TI HH, P1 H, P2 3240 01103 A ST 3240 31181 HS 3240 31181 XA FAULT 3240 31181 II 3240 01106 A TE 3240 01107 A TE HH, P1 H, P2 3240 01102 HSA RHS A,B 3240 01110 WIT 3240 01105 ZAHH LHS, P1 LHS RHS P2 P2 P1 P1 RHS LHS LHS A,B A-B A,B VENDOR H, P1 LHS A,B A-B A,B RHS RHS, P1 A,B A,B A TO ? J/SP P1 V V V V V V V V V V V V C2-3240-ST-051 C2-3240-FE-016 C2-3240-SL-021 V V V V ES V ES ES 3240 01121 XA + M T1 RHS M VENDOR VENDOR 3240 01183 HS 3240 01183 XA 3240 01183 II 3240 01116 LIT 3240 01106 B TE 3240 01181 II 3240 01107 B TE 3240 01181 XA 3240 01118 VT A-D 3240 01115 B LAH 3240 01182 II 3240 01118 VE 3240 01103 B SE 3240 01115 A LAH P1 3240 01115 A LSH 3240 01182 XA 3240 01116 LI 3240 01119 LAH P1 3240 01181 HS 3240 01182 HS 3240 01115 B LSH HH, P1 H, P2 3240 01107 A TI 3240 01106 B TI HH, P1 H, P2 3240 01119 LSH 3240 01116 A LI 3240 31181 H TI BRG FRONT H, P2 HH, P1 3240 31181 G TI BRG REAR H, P2 HH, P1 3240 01115 B LE 3240 01116 LE 3240 01118 VI A-D 3240 01115 A LE SEC. CRUSHER PRODUCT COARSE ORE SURGE BIN NO.2, C2-3420-BN-012 3232 3200-25J-012 SEC. CRUSHER PRODUCT SEC. CRUSHER DISCHARGE CONV. NO.1, C2-3220-CV-016 1787 3200-25J-045 PLANT AIR 1805 3200-25J-017 COARSE SCREEN U/S TERTIARY CRISHER SURGE BIN FEED CONVEYOR NO.1, 1364 3200-25J-025 COARSE SCREEN O/S COARSE SCREEN O/S CONVEYOR NO.1, 1365 3200-25J-023 DUST COARSE SCREENING DUST COLLECTOR NO.1, 2093 3200-25J-020 ST/SP FAULT H, P2 L, P2 C2-3240-CV-031 ST/SP C2-3240-DC-231 LHS FAULT DUCTING HH, P1 H, P2 P1 FAULT BIN CONTINUED ON P&ID 3200-25J-012 J/SP C2-3240-CV-015 EXPERT SYSTEM C2-3240-BN-011 V TO ATMOSPHERE C2-3240-DC-062 C2-3240-FA-062 C2-3240-ST-061 SIZE: C2-3240-ST-061 COARSE SCREEN NO.1 O/S CHUTE SIZE: MOTOR: C2-3240-FA-061 C.O. SURGE BIN DUST COLLECTOR NO.1 FAN SIZE: MOTOR: C2-3240-FE-016 C.O. SCREEN NO.1 FEEDER SIZE: MOTOR: C2-3240-SC-011 C.O. SCREEN NO. 1 AG KM LT ISSUED FOR CLIENT REVIEW 23-Dec-11 B RP ISSUED FOR COMBINED REVIEW 23-Jun-11 A 12/23/2011 K.MUNDY A. GUNSON T. OH L. TAMELIN 1/3/2012 1:07:17 PM WBS: 3240 B PIPING AND INSTRUMENTATION DIAGRAM SCREENING BUILDING 3200-25J-011 COARSE ORE FEEDER AND SCREEN NO. 1 C2-3240-SC-011 SIZE: MOTOR: C2-3240-FA-062 C.O. SURGE BIN DUST COLLECTOR NO.2 FAN SIZE: C2-3240-DC-062 C.O. SURGE BIN DUST COLLECTOR NO.2 C2-3240-FA-061 C2-3240-ST-055 C2-3240-ST-071 TO ATMOSPHERE C2-3240-DC-061 V V SIZE: C2-3240-ST-051 C.O. SURGE BIN RECLAIM FEEDER SKIRT V SIZE: C2-3240-ST-071 C.O. SCREEN NO.1 U/S CHUTE ES V SIZE: C2-3240-DC-061 C.O. SURGE BIN DUST COLLECTOR NO.1 SIZE: C2-3240-ST-055 C.O. SCREEN NO.1 FEED CHUTE SIZE:650 t LIVE C2-3240-BN-011 C.O. SURGE BIN NO.1 ES ES ES SIZE: C2-3240-SL-021 C.O. SCREEN FEEDER NO.1 VOLUMETRIC BELT SCALE 3220-AP-1047-C1A-2"-N 3240-AP-1279-C1A-2"-N ES D 4 F B A 3 2 1 5 6 8 E 7 C REV. APPROVED CHK. DES. REV. DATE REVISION DESCRIPTION CLIENT LEAD ENGINEER SCALE DRAWING NUMBER CHECK DESIGN CHECK DRAWING DESIGNED BY DRAWN BY APPROVAL DATE APPROVAL DATE APPROVED CHK. DES. REV. DATE REVISION DESCRIPTION REFERENCE DRAWING No. 1:100 0 1:200 5m 10m 0 5m 10m 15m 20m 1:500 10m 0 20m 30m 40m 50m 1:1000 0 100m 50m 1:20 0 0.5m 1m 1.5m 2m 0 1:25 0.5m 1m 1.5m 1:33 1/3 2.5m 2m 0 1m 2m 3m 0 1:50 1m 2m 3m 4m 5m CAD FILE NAME: P:0CAD000SPEM** MODEL UPDATED: DWG. FILE UPDATED: MANUAL CHANGES MADE: YES NO YES NO YES NO PROJECT MANAGER ENGINEERING MANAGER AREA PROJECTENGINEER REFERENCE DRAWINGS SAFETY SHARE: APPROVAL DATE CONTRACT NO. SAFETY SHARE : BA6CVA1.IGR NOTICE: THIS DRAWING HAS NOT BEEN PUBLISHED AND IS THE SOLE PROPERTY OF FLUOR AND IS LENT TO THE BORROWER FOR THEIR CONFIDENTIAL USE ONLY, AND IN CONSIDERATION OF THE LOAN OF THIS DRAWING, THE BORROWER PROMISES AND AGREES TO RETURN IT UPON REQUEST AND AGREES THAT IT WILL NOT BE REPRODUCED, COPIED LENT OR OTHERWISE DISPOSED OF DIRECTLY OR INDIRECTLY, NOR USED FOR ANY OTHER PURPOSE OTHER THAN WHICH IT IS FURNISHED. NONE Apr 2011 240K-C2- DUST DUST COLLECTOR C2-3240-DC-233 3982 3200-25J-020 DUST DUST COLLECTOR C2-3240-DC-232 3983 3200-25J-020 DUCTING DUCTING CONVEYOR CONVEYOR A-D 3240 01123 PDAH 3240 01122 PDAH
  • 21.
    M LHS TEAR T1 M 3240 01204 ZAH P2 P2 3240 01283 XA 3240 01283 HS 3240 01283 II 3240 01282 II 3240 01205 ZAHH LHS, P1 3240 01207B TE 3240 01281 HS 3240 01205 ZSH RHS 3240 01203 A ST 3240 01210 WE LHS 3240 01203 SDI 3240 01208 XA P1 3240 01216 LI 3240 01206 B TE 3240 01204 ZSH 3240 01217 LSL 3240 01201 HSA 3240 01206 A TE 3240 01202 HSS RHS 3240 01210 SE 3240 01208 B XA 3240 01217 LAL 3240 01206 A TI HH, P1 H, P2 3240 01282 HS 3240 01203 B SI 3240 01203 B ST 3240 01215 B LSH 3240 01215 A LSH 3240 01215 B LE 3240 01202 HSA RHS A,B 3240 01215 A LAH P1 3240 01281 XA 3240 01203 A SI 3240 01215 B LAH 3240 01203 B SE 3240 01210 WI 3240 01218 VT A-D 3240 01205 ZS 3240 01207 A TE RHS HH, P1 H, P2 3240 01203 A SE 3240 01218 VE 3240 01281 II 3240 01215 A LE 3240 01207 A TI 3240 01219 LSH 3240 01216 LT 3240 01219 LAH P1 3240 01208 A XS 3240 01204 ZSHH 3240 01204 ZAHH 3240 01216 A LI 3240 01207 B TI HH, P1 H, P2 3240 01218 VI A-D 3240 01282 XA 3240 01206 B TI HH, P1 H, P2 3240 01201 HSS 3240 01210 WIT 3240 01216 LE 3240 01205 ZAH SEC. CRUSHER PRODUCT SEC. CRUSHER DISCHARGE CONV. NO.1, C2-3220-CV-016 3232 3200-25J-011 SEC. CRUSHER PRODUCT C2-3200-BN-013 3233 3200-25J-013 COARSE SCREEN O/S COARSE SCREEN O/S CONVEYOR NO.1, 1807 3200-25J-023 PLANT AIR 1972 3200-25J-017 DUST COARSE SCREENING DUST COLLECTOR NO.2, 2094 3200-25J-020 COARSE SCREEN U/S TERTIARY CRUSHER SURGE BIN FEED CONVEYOR NO.1, 1812 3200-25J-025 ST/SP FAULT BIN CONTINUED ON P&ID 3200-25J-013 P1 A,B H, P2 L, P2 LHS A,B P1 EXPERT SYSTEM C2-3240-CV-015 LHS A,B RHS ST/SP DUCTING BIN CONTINUED ON P&ID 3200-25J-011 RHS, P1 P1 J/SP C2-3240-CV-031 A,B A,B FAULT H, P1 C2-3240-DC-231 LHS FAULT LHS RHS L, P1 A,B HH, P1 H, P2 C2-3240-SC-012 TO ATMOSPHERE V V SIZE: MOTOR: C2-3240-FE-017 C.O. SCREEN NO.2 FEEDER SIZE: MOTOR: C2-3240-FA-063 C.O. SURGE BIN DUST COLLECTOR NO.2 FAN C2-3240-ST-062 SIZE: C2-3240-ST-062 COARSE SCREEN NO.2 O/S CHUTE SIZE: MOTOR: C2-3240-SC-012 C.O. SCREEN NO. 2 C2-3240-ST-052 C2-3240-SL-022 V V V V C2-3240-FA-063 V V V V V V C2-3240-FE-017 TO ATMOSPHERE C2-3240-DC-064 C2-3240-FA-064 AG KM LT ISSUED FOR CLIENT REVIEW 23-Dec-11 B RP ISSUED FOR COMBINED REVIEW 23-Jun-11 A 12/23/2011 K.MUNDY A. GUNSON T. OH L. TAMELIN 1/3/2012 11:04:45 AM WBS: 3240 B PIPING AND INSTRUMENTATION DIAGRAM SCREENING BUILDING 3200-25J-012 COARSE ORE FEEDER AND SCREEN NO. 2 C2-3240-ST-072 C2-3240-BN-012 C2-3240-DC-063 C2-3240-ST-056 3240-AP-1280-C1A-2"-N V SIZE:650t LIVE C2-3240-BN-012 C.O. SURGE BIN NO. 2 V V 3220-AP-1055-C1A-2"-N V V V SIZE: C2-3240-SL-022 C.O. SCREEN NO.2 FEEDER VOLUMETRIC BELT SCALE V SIZE: C2-3240-ST-072 C.O. SCREEN U/S CHUTE SIZE: C2-3240-ST-052 C.O. SURGE BIN FEEDER SKIRT SIZE: C2-3240-ST-056 C.O. SCREEN NO.2 FEED CHUTE V ES ES SIZE: C2-3240-DC-063 C.O SURGE BIN DUST COLLECTOR NO.2 ES V ES SIZE: C2-3240-DC-064 C.O. SURGE BIN DUST COLLECTOR NO.1 SIZE: MOTOR: C2-3240-FA-064 C.O. SURGE BIN DUST COLLECTOR NO.1 FAN D 4 F B A 3 2 1 5 6 8 E 7 C REV. APPROVED CHK. DES. REV. DATE REVISION DESCRIPTION CLIENT LEAD ENGINEER SCALE DRAWING NUMBER CHECK DESIGN CHECK DRAWING DESIGNED BY DRAWN BY APPROVAL DATE APPROVAL DATE APPROVED CHK. DES. REV. DATE REVISION DESCRIPTION REFERENCE DRAWING No. 1:100 0 1:200 5m 10m 0 5m 10m 15m 20m 1:500 10m 0 20m 30m 40m 50m 1:1000 0 100m 50m 1:20 0 0.5m 1m 1.5m 2m 0 1:25 0.5m 1m 1.5m 1:33 1/3 2.5m 2m 0 1m 2m 3m 0 1:50 1m 2m 3m 4m 5m CAD FILE NAME: P:0CAD000SPEM** MODEL UPDATED: DWG. FILE UPDATED: MANUAL CHANGES MADE: YES NO YES NO YES NO PROJECT MANAGER ENGINEERING MANAGER AREA PROJECTENGINEER REFERENCE DRAWINGS SAFETY SHARE: APPROVAL DATE CONTRACT NO. SAFETY SHARE : BA6CVA1.IGR NOTICE: THIS DRAWING HAS NOT BEEN PUBLISHED AND IS THE SOLE PROPERTY OF FLUOR AND IS LENT TO THE BORROWER FOR THEIR CONFIDENTIAL USE ONLY, AND IN CONSIDERATION OF THE LOAN OF THIS DRAWING, THE BORROWER PROMISES AND AGREES TO RETURN IT UPON REQUEST AND AGREES THAT IT WILL NOT BE REPRODUCED, COPIED LENT OR OTHERWISE DISPOSED OF DIRECTLY OR INDIRECTLY, NOR USED FOR ANY OTHER PURPOSE OTHER THAN WHICH IT IS FURNISHED. NONE Apr 2011 240K-C2- VENDOR VENDOR ES ES FEEDER AFD DRIVE 3240 31281 H TE BRG FRONT 3240 31281 G TE BRG REAR 3240 31281 HS 3240 31281 XA FAULT 3240 31281 II VENDOR A TO ? J/SP 3240 01221 XA + 3240 31281 H TI BRG FRONT H, P2 HH, P1 3240 31281 G TI BRG REAR H, P2 HH, P1 ES DUST DUST COLLECTOR, C2-3240-DC-233 3984 3200-25J-020 DUST DUST COLLECTOR, C2-3240-DC-232 3985 3200-25J-020 ES DUCTING DUCTING CONVEYOR CONVEYOR A-D 3240 01223 PDAH 3240 01222 PDAH
  • 22.
    M TEAR T1 M 3240 01305 ZAH P1 3240 01304 ZAH P1 3240 01383 II 3240 01383 HS 3240 01383 XA 3240 01315 A LSH 3240 01310 SE 3240 01317 LSL 3240 01304 ZSHH 3240 01305 ZSHH 3240 01308 B XA 3240 01316 LE 3240 01316A LI 3240 01306 B TI HH, P1 H, P2 3240 01303 SDI 3240 01315 B LE 3240 01307 A TI 3240 01381 XA 3240 01382 II 3240 01318 VT A-D 3240 01315 B LSH 3240 01381 II 3240 01304 ZSH 3240 01315 A LE 3240 01303 B SE 3240 01382 XA 3240 01303 A SE 3240 01301 HSS 3240 01308 XA A,B P1 3240 01318 VE 3240 01316 LI 3240 01302 HSA RHS A,B 3240 01310 WI 3240 01304 ZAHH 3240 01301 HSA 3240 01315 A LAH P1 3240 01310 WE LHS 3240 01319 LSH 3240 01319 LAH P1 3240 01310 WIT 3240 01306 A TE 3240 01302 HSS RHS 3240 01382 HS 3240 01303 B SI 3240 01303 A SI 3240 01307 B TE 3240 01381 HS 3240 01306 A TI HH, P1 H, P2 3240 01307 A TE HH, P1 H, P2 RHS 3240 01303 B ST 3240 01307 B TI HH, P1 H, P2 3240 01318 VI A-D 3240 01308 A XS 3240 01316 LT 3240 01305 ZSH 3240 01306 B TE 3240 01317 LAL 3240 01303 A ST 3240 01315 B LAH 3240 01305 ZAHH LHS, P1 COARSE SCREEN U/S TERTIARY CRUSHER SURGE BIN FEED CONVEYOR NO. 1, 1813 3200-25J-025 SEC. CRUSHER PRODUCT SEC. CRUSHER DISCHARGE CONV. NO.1, C2-3220-CV-016 3233 3200-25J-012 SEC. CRUSHER PRODUCT COARSE ORE SURGE BIN NO.4, C2-3240-BN-014 3235 3200-25J-014 COARSE ORE O/S COARSE SCREEN O/S CONVEYOR NO. 1, 1808 3200-25J-023 PLANT AIR 1986 3200-25J-017 DUST COARSE SCREENING DUST COLLECTOR NO.1, 2095 3200-25J-020 RHS LHS ST/SP FAULT BIN CONTINUED ON P&ID 3200-25J-012 P1 RHS A,B A,B LHS A,B RHS EXPERT SYSTEM ST/SP P1 HH, P1 H, P2 A,B C2-3240-DC-231 H, P1 A,B A,B C2-3240-CV-015 RHS, P1 C2-3240-CV-031 FAULT H, P1 BIN CONTINUED ON P&ID 3200-25J-014 J/SP LHS A,B P1 H, P2 L, P2 FAULT DUCTING LHS SIZE: C2-3240-ST-073 C.O. SCREEN NO.3 U/S CHUTE C2-3240-ST-063 SIZE: C2-3240-ST-063 COARSE SCREEN NO.3 O/S CHUTE SIZE: MOTOR: C2-3240-SC-013 C.O. SCREEN NO. 3 SIZE: MOTOR: C2-3240-FE-018 C.O. SCREEN NO.3 FEEDER SIZE: MOTOR: C2-3240-FA-241 C.O. SURGE BIN DUST COLLECTOR FAN SIZE: C2-3240-ST-053 C.O. SURGE BIN FEEDER SKIRT SIZE: C2-3240-DC-241 C.O SURGE BIN DUST COLLECTOR (DRY) SIZE:650t LIVE C2-3240-BN-013 C.O. SURGE BIN NO.3 C2-3240-BN-013 3220-AP-1054-C1A-2"-N AG KM LT ISSUED FOR CLIENT REVIEW 23-Dec-11 B RP ISSUED FOR COMBINED REVIEW 23-Jun-11 A 12/23/2011 K.MUNDY A. GUNSON T. OH L. TAMELIN 1/3/2012 11:07:22 AM WBS: 3240 B PIPING AND INSTRUMENTATION DIAGRAM SCREENING BUILDING 3200-25J-013 COARSE ORE FEEDER AND SCREEN NO. 3 C2-3240-ST-073 C2-3240-SL-023 C2-3240-FE-018 TO ATMOSPHERE C2-3240-FA-241 SIZE: C2-3240-ST-057 C.O. SCREEN NO.3 FEED CHUTE C2-3240-ST-053 C2-3240-SC-013 C2-3240-ST-057 SIZE: C2-3240-SL-023 C.O. SCREEN NO.3 FEEDER VOLUMETRIC BELT SCALE C2-3240-DC-241 3240-AP-1281-C1A-2"-N V V V V V V V ES V ES ES ES ES V V V V V V V V ES V V V V V C2-3240-DC-242 C2-3240-FA-242 TO ATMOSPHERE SIZE: C2-3240-DC-242 C.O SURGE BIN DUST COLLECTOR (DRY) SIZE: MOTOR: C2-3240-FA-242 C.O. SURGE BIN DUST COLLECTOR FAN D 4 F B A 3 2 1 5 6 8 E 7 C REV. APPROVED CHK. DES. REV. DATE REVISION DESCRIPTION CLIENT LEAD ENGINEER SCALE DRAWING NUMBER CHECK DESIGN CHECK DRAWING DESIGNED BY DRAWN BY APPROVAL DATE APPROVAL DATE APPROVED CHK. DES. REV. DATE REVISION DESCRIPTION REFERENCE DRAWING No. 1:100 0 1:200 5m 10m 0 5m 10m 15m 20m 1:500 10m 0 20m 30m 40m 50m 1:1000 0 100m 50m 1:20 0 0.5m 1m 1.5m 2m 0 1:25 0.5m 1m 1.5m 1:33 1/3 2.5m 2m 0 1m 2m 3m 0 1:50 1m 2m 3m 4m 5m CAD FILE NAME: P:0CAD000SPEM** MODEL UPDATED: DWG. FILE UPDATED: MANUAL CHANGES MADE: YES NO YES NO YES NO PROJECT MANAGER ENGINEERING MANAGER AREA PROJECTENGINEER REFERENCE DRAWINGS SAFETY SHARE: APPROVAL DATE CONTRACT NO. SAFETY SHARE : BA6CVA1.IGR NOTICE: THIS DRAWING HAS NOT BEEN PUBLISHED AND IS THE SOLE PROPERTY OF FLUOR AND IS LENT TO THE BORROWER FOR THEIR CONFIDENTIAL USE ONLY, AND IN CONSIDERATION OF THE LOAN OF THIS DRAWING, THE BORROWER PROMISES AND AGREES TO RETURN IT UPON REQUEST AND AGREES THAT IT WILL NOT BE REPRODUCED, COPIED LENT OR OTHERWISE DISPOSED OF DIRECTLY OR INDIRECTLY, NOR USED FOR ANY OTHER PURPOSE OTHER THAN WHICH IT IS FURNISHED. NONE Apr 2011 240K-C2- VENDOR VENDOR FEEDER AFD DRIVE 3240 31381 H TE BRG FRONT 3240 31381 G TE BRG REAR 3240 31381 HS 3240 31381 XA FAULT 3240 31381 II VENDOR A TO ? J/SP 3240 01321 XA + 3240 31381 H TI BRG FRONT H, P2 HH, P1 3240 31381 G TI BRG REAR H, P2 HH, P1 ES ES DUCTING DUCTING CONVEYOR CONVEYOR DUST DUST COLLECTOR, C2-3240-DC-232 3987 3200-25J-020 DUST DUST COLLECTOR, C2-3240-DC-233 3988 3200-25J-020 LHS A-D 3240 01323 PDAH 3240 01322 PDAH
  • 23.
    T1 M LHS A,B TEAR M 3240 01483 XA 3240 01483 II 3240 01483 HS 3240 01405 ZAH P2 3240 01404 ZAH 3240 01416 LI 3240 01407 B TI HH,P1 H, P2 3240 01415 B LAH 3240 01418 VT A-D 3240 01408 B XA 3240 01408 A XS 3240 01401 HSS 3240 01404 ZSH 3240 01416 LE 3240 01418 VE 3240 01415 A LE 3240 01410 WE LHS 3240 01416 A LI 3240 01410 WIT 3240 01404 ZSHH 3240 01404 ZAHH 3240 01403 B SI 3240 01401 HSA 3240 01481 XA 3240 01417 LSL 3240 01403 SDI 3240 01402 HSA RHS A,B 3240 01406 A TE 3240 01403 A ST 3240 01407 B TE 3240 01481 II 3240 01415 B LSH 3240 01416 LT 3240 01415 A LSH 3240 01482 XA 3240 01403 B ST 3240 01410 SE 3240 01405 ZSHH A,B 3240 01406 A TI HH, P1 H, P2 3240 01407 A TE HH, P1 H, P2 3240 01415 B LE 3240 01410 WI 3240 01415 A LAH P1 3240 01418 VI A-D 3240 01482 II 3240 01406 B TI HH, P1 H, P2 3240 01402 HSS RHS 3240 01481 HS 3240 01403 A SI 3240 01417 LAL 3240 01419 LSH 3240 01419 LAH P1 3240 01405 ZAHH LHS, P1 3240 01482 HS 3240 01403 A SE 3240 01407 A TI 3240 01405 ZSH 3240 01403 B SE 3240 01406 B TE 3240 01408 XA P1 A,B SEC. CRUSHER PRODUCT SEC. CRUSHER DISCHARGE CONV. NO. 1, C2-3220-CV-016 3235 3200-25J-013 COARSE SCREEN U/S TERTIARY CRUSHER SURGE BIN FEED CONVEYOR NO. 1, 1814 3200-25J-025 PLANT AIR 1991 3200-25J-017 COARSE SCREEN O/S COARSE SCREEN O/S CONVEYOR NO. 1, 1809 3200-25J-023 DUST COARSE SCREENING DUST COLLECTOR NO. 1, 2096 3200-25J-020 FAULT ST/SP RHS P2 J/SP P1 LHS ST/SP DUCTING P1 C2-3240-CV-031 LHS RHS A,B P1 FAULT EXPERT SYSTEM A,B H, P2 L, P2 BIN CONTINUED ON P&ID 3200-25J-013 LHS P1 A,B LHS A,B RHS, P1 C2-3240-DC-231 H, P1 FAULT C2-3240-CV-015 HH, P1 H, P2 A,B C2-3240-BN-014 C2-3240-ST-064 SIZE: C2-3240-ST-064 COARSE SCREEN O/S CHUTE C2-3240-FE-019 SIZE: MOTOR: C2-3240-SC-014 C.O. SCREEN NO. 4 SIZE: MOTOR: C2-3240-FE-019 C.O. SCREEN NO.4 FEEDER SIZE: MOTOR: C2-3240-FA-243 C.O. SURGE BIN DUST COLLECTOR FAN TO ATMOSPHERE C2-3240-ST-054 SIZE: C2-3240-DC-243 C.O SURGE BIN DUST COLLECTOR C2-3240-FA-243 C2-3240-ST-074 C2-3240-SC-014 AG KM LT ISSUED FOR CLIENT REVIEW 23-Dec-11 B RP ISSUED FOR COMBINED REVIEW 23-Jun-11 A 12/23/2011 K.MUNDY A. GUNSON T. OH L. TAMELIN 1/3/2012 11:10:13 AM WBS: 3240 B PIPING AND INSTRUMENTATION DIAGRAM SCREENING BUILDING 3200-25J-014 COARSE ORE FEEDER AND SCREEN NO. 4 3220-AP-1053-C1A-2"-N C2-3240-SL-024 C2-3240-DC-243 SIZE: C2-3240-ST-074 C.O. SCREEN U/S CHUTE C2-3240-ST-058 SIZE: C2-3240-SL-024 C.O. SCREEN NO.4 FEEDER VOLUMETRIC BELT SCALE SIZE:650t LIVE C2-3240-BN-014 C.O. SURGE BIN NO. 4 SIZE: C2-3240-ST-054 C.O. SURGE BIN FEEDER SKIRT C2-3240-FA-244 C2-3240-DC-244 TO ATMOSPHERE SIZE: C2-3240-ST-058 C.O. SCREEN FEED CHUTE 3240-AP-1282-C1A-2"-N ES V ES V V ES V V ES V V V ES V V V V V V V V V ES V V V V SIZE: C2-3240-DC-244 C.O. SURGE BIN DUST COLLECTOR SIZE: MOTOR: C2-3240-FA-244 C.O. SURGE BIN DUST COLLECTOR FAN D 4 F B A 3 2 1 5 6 8 E 7 C REV. APPROVED CHK. DES. REV. DATE REVISION DESCRIPTION CLIENT LEAD ENGINEER SCALE DRAWING NUMBER CHECK DESIGN CHECK DRAWING DESIGNED BY DRAWN BY APPROVAL DATE APPROVAL DATE APPROVED CHK. DES. REV. DATE REVISION DESCRIPTION REFERENCE DRAWING No. 1:100 0 1:200 5m 10m 0 5m 10m 15m 20m 1:500 10m 0 20m 30m 40m 50m 1:1000 0 100m 50m 1:20 0 0.5m 1m 1.5m 2m 0 1:25 0.5m 1m 1.5m 1:33 1/3 2.5m 2m 0 1m 2m 3m 0 1:50 1m 2m 3m 4m 5m CAD FILE NAME: P:0CAD000SPEM** MODEL UPDATED: DWG. FILE UPDATED: MANUAL CHANGES MADE: YES NO YES NO YES NO PROJECT MANAGER ENGINEERING MANAGER AREA PROJECTENGINEER REFERENCE DRAWINGS SAFETY SHARE: APPROVAL DATE CONTRACT NO. SAFETY SHARE : BA6CVA1.IGR NOTICE: THIS DRAWING HAS NOT BEEN PUBLISHED AND IS THE SOLE PROPERTY OF FLUOR AND IS LENT TO THE BORROWER FOR THEIR CONFIDENTIAL USE ONLY, AND IN CONSIDERATION OF THE LOAN OF THIS DRAWING, THE BORROWER PROMISES AND AGREES TO RETURN IT UPON REQUEST AND AGREES THAT IT WILL NOT BE REPRODUCED, COPIED LENT OR OTHERWISE DISPOSED OF DIRECTLY OR INDIRECTLY, NOR USED FOR ANY OTHER PURPOSE OTHER THAN WHICH IT IS FURNISHED. NONE Apr 2011 240K-C2- VENDOR VENDOR ES FEEDER AFD DRIVE 3240 31481 H TE BRG FRONT 3240 31481 G TE BRG REAR 3240 31481 HS 3240 31481 XA FAULT 3240 31481 II VENDOR A TO ? J/SP 3240 01421 XA + 3240 31481 H TI BRG FRONT H, P2 HH, P1 3240 31481 G TI BRG REAR H, P2 HH, P1 DUCTING DUCTING CONVEYOR CONVEYOR DUST DUST COLLECTOR, C2-3240-DC-232 3989 3200-25J-020 DUST DUST COLLECTOR, C2-3240-DC-233 3990 3200-25J-020 ES RHS A-D 3240 01423 PDAH 3240 01422 PDAH
  • 24.
    D 4 F B A 3 2 1 5 68 E 7 C REV. APPROVED CHK. DES. REV. DATE REVISION DESCRIPTION CLIENT LEAD ENGINEER SCALE DRAWING NUMBER CHECK DESIGN CHECK DRAWING DESIGNED BY DRAWN BY APPROVAL DATE APPROVAL DATE APPROVED CHK. DES. REV. DATE REVISION DESCRIPTION REFERENCE DRAWING No. 1:100 0 1:200 5m 10m 0 5m 10m 15m 20m 1:500 10m 0 20m 30m 40m 50m 1:1000 0 100m 50m 1:20 0 0.5m 1m 1.5m 2m 0 1:25 0.5m 1m 1.5m 1:33 1/3 2.5m 2m 0 1m 2m 3m 0 1:50 1m 2m 3m 4m 5m CAD FILE NAME: P:0CAD000SPEM** MODEL UPDATED: DWG. FILE UPDATED: MANUAL CHANGES MADE: YES NO YES NO YES NO PROJECT MANAGER ENGINEERING MANAGER AREA PROJECTENGINEER REFERENCE DRAWINGS SAFETY SHARE: APPROVAL DATE CONTRACT NO. SAFETY SHARE : BA6CVA1.IGR NOTICE: THIS DRAWING HAS NOT BEEN PUBLISHED AND IS THE SOLE PROPERTY OF FLUOR AND IS LENT TO THE BORROWER FOR THEIR CONFIDENTIAL USE ONLY, AND IN CONSIDERATION OF THE LOAN OF THIS DRAWING, THE BORROWER PROMISES AND AGREES TO RETURN IT UPON REQUEST AND AGREES THAT IT WILL NOT BE REPRODUCED, COPIED LENT OR OTHERWISE DISPOSED OF DIRECTLY OR INDIRECTLY, NOR USED FOR ANY OTHER PURPOSE OTHER THAN WHICH IT IS FURNISHED. NONE Apr 2011 240K-C2- M 3240 01581 II 3240 01516 LI 3240 01505 ZSH 3240 01508 XA P1 3240 01503 SDI 3240 01518 VI A-D 3240 01504 ZSHH 3240 01508 A XS 3240 01518 VT A-D 3240 01504 ZSH 3240 01503 B SI 3240 01518 VE 3240 01516 A LI 3240 01515 A LAH 3240 01516 LT 3240 01516 LE 3240 01582 HS 3240 01507 A TI 3240 01507 A TE HH, P1 H, P2 3240 01507 B TI 3240 01510 WI 3240 01515 A LSH 3240 01506 A TI HH, P1 H, P2 3240 01506 A TE 3240 01510 WIT 3240 01582 XA 3240 01504 ZAHH 3240 01510 WE LHS 3240 01582 II 3240 01510 SE 3240 01507 B TE HH, P1 H, P2 3240 01506 B TI HH, P1 H, P2 3240 01506 B TE 3240 01517 LAL 3240 01519 LAH P1 3240 01505 ZAHH LHS, P1 3240 01517 LSL 3240 01503 B ST 3240 01581 HS 3240 01501 HSA 3240 01519 LSH 3240 01503 B SE 3240 01502 HSA 3240 01501 HSS 3240 01581 XA 3240 01505 ZSHH 3240 01502 HSS RHS A,B P1 FAULT J/SP RHS, P1 EXPERT SYSTEM RHS A,B L, P1 ST/SP A,B H, P1 FAULT DUCTING BIN CONTINUED ON P&ID 3200-25J-016 C2-3240-ST-111 C2-3240-SC-021 C2-3240-ST-091 C2-3240-SL-031 C2-3240-ST-081 3220-AP1052-C1A-2"-N C2-3240-DC-097 C2-3240-FA-097 C2-3240-FE-026 C2-3240-BN-015 H, P2 L, P2 LHS RHS A,B P1 P1 LHS A,B A,B A,B HH, P1 H, P2 SIZE: C2-3240-ST-091 C.O. SCREEN FEED CHUTE SIZE: C2-3240-ST-111 C.O. SCREEN U/S CHUTE TO ATMOSPHERE SIZE: C2-3240-ST-081 C.O. SURGE BIN FEEDER SKIRT SIZE: C2-3240-SL-031 C.O. SCREEN FEEDER NO.5 VOLUMETRIC BELT SCALE SIZE: C2-3240-DC-097 C.O. SURGE BIN DUST COLLECTOR SIZE:650t LIVE C2-3240-BN-015 C.O. SURGE BIN NO.5 3240 01515 A LE 3240 01515 B LE 3240 01515 B LSH 3240 01515 B LAH P1 3240 01503 A SE 3240 01503 A ST 3240 01503 A SI 3240 01508 B XA TEAR C2-3240-DC-042 C2-3240-CV-025 COARSE SCREEN O/S COARSE SCREEN O/S CONVEYOR NO. 2, 1942 3200-25J-024 COARSE SCREEN U/S TERTIARY CRUSHER SURGE BIN FEED CONVEYOR NO. 2, 1905 3200-25J-026 SEC. CRUSHER PRODUCT SEC. CRUSHER DISCHARGE CONV. NO. 2, C2-3220-CV-026 1969 3200-25J-046 PLANT AIR 2007 3200-25J-017 C2-3240-CV-041 T1 V V ES V ES ES V V V V V ES ES V AG KM LT ISSUED FOR CLIENT REVIEW 23-Dec-11 B RP ISSUED FOR COMBINED REVIEW 23-Jun-11 A 12/23/2011 K.MUNDY A. GUNSON T. OH L. TAMELIN 1/3/2012 11:13:09 AM WBS: 3240 B PIPING AND INSTRUMENTATION DIAGRAM SCREENING BUILDING 3200-25J-015 COARSE ORE FEEDER AND SCREEN NO. 5 RHS LHS A,B RHS LHS SIZE: C2-3240-ST-115 COARSE SCREEN O/S CHUTE C2-3240-ST-115 A,B SIZE: MOTOR: C2-3240-SC-021 C.O. SCREEN NO. 5 SIZE: MOTOR: C2-3240-FE-026 C.O. SCREEN FEEDER NO. 5 SIZE: MOTOR: C2-3240-FA-097 C.O. SURGE BIN DUST COLLECTOR FAN SEC. CRUSHER PRODUCT C2-3240-BN-016 3238 3200-25J-016 DUST COARSE SCREEN DUST COLLECTOR NO. 5, 3239 3200-25J-020 V V RHS LHS V V V V ES V V V V 3240 01505 ZAH 3240 01504 ZAH P2 P2 V V M 3240 01583 II 3240 01583 HS 3240 01583 XA ST/SP FAULT C2-3240-DC-098 C2-3240-FA-098 TO ATMOSPHERE SIZE: MOTOR: C2-3240-FA-098 C.O. SURGE BIN DUST COLLECTOR FAN SIZE: C2-3240-DC-098 C.O. SURGE BIN DUST COLLECTOR 3240-AP-1283-C1A-2"-N VENDOR VENDOR ES ES DUCTING DUCTING CONVEYOR CONVEYOR FEEDER AFD DRIVE 3240 31581 H TE BRG FRONT 3240 31581 G TE BRG REAR 3240 31581 HS 3240 31581 XA FAULT 3240 31581 II VENDOR A TO ? J/SP 3240 01521 XA + 3240 31581 H TI BRG FRONT H, P2 HH, P1 3240 31581 G TI BRG REAR H, P2 HH, P1 DUST DUST COLLECTOR, C2-3240-DC-043 3991 3200-25J-020 DUST DUST COLLECTOR, C2-3240-DC-044 3992 3200-25J-020 A-D 3240 01523 PDAH 3240 01522 PDAH
  • 25.
    T1 TEAR A,B M LHS M VENDOR 3240 01605 ZAH 3240 01604 ZAH P2 VENDOR 3240 01683 XA 3240 01683 II 3240 01683 HS 3240 01618 VT A-D 3240 01682 II 3240 01681 XA 3240 01617 LAL 3240 01607 A TI 3240 01603 SDI 3240 01615 B LE 3240 01615A LSH 3240 01603 B SE 3240 01682 HS 3240 01604 ZSHH 3240 01603 A ST 3240 01608 XA P1 3240 01605 ZAHH LHS, P1 3240 01603 B ST 3240 01682 XA 3240 01603 A SI 3240 01610 WIT 3240 01606 B TI HH, P1 H, P2 3240 01610 WE LHS 3240 01601 HSA 3240 01615 B LAH 3240 01602 HSA RHS A,B 3240 01602 HSS RHS 3240 01610 SE 3240 01615 B LSH 3240 01607 A TE HH, P1 H, P2 3240 01616 LT 3240 01604 ZSH 3240 01618 VE 3240 01619 LSH 3240 01617 LSL 3240 01618 VI A-D 3240 01601 HSS 3240 01606 B TE 3240 01607 B TI HH, P1 H, P2 3240 01616 LI 3240 01615 A LAH P1 3240 01616 LE 3240 01604 ZAHH A,B 3240 01605 ZSHH 3240 01619 LAH P1 3240 01605 ZSH RHS 3240 01608 B XA 3240 01608 A XS 3240 01681 HS 3240 01681 II 3240 01610 WI 3240 01603 A SE 3240 01615 A LE 3240 01607 B TE 3240 01606 A TI HH, P1 H, P2 3240 01616 A LI 3240 01606 A TE 3240 01603 B SI PLANT AIR 2018 3200-25J-017 COARSE SCREEN O/S COARSE SCREEN O/S CONVEYOR NO. 2, 1943 3200-25J-024 DUST COARSE SCREEN DUST COLLECTOR NO. 5, 2099 3200-25J-020 SEC. CRUSHER PRODUCT SEC. CRUSHER DISCHARGE CONV. NO. 2, C2-3220-CV-026 3238 3200-25J-015 SEC. CRUSHER PRODUCT C2-3240-BN-017 3240 3200-25J-021 COARSE SCREEN U/S TERTIARY CRUSHER SURGE BINN FEED CONVEYOR NO. 2, 1906 3200-25J-026 RHS LHS P2 ST/SP FAULT BIN CONTINUED ON P&ID 3200-25J-015 A,B LHS LHS A,B ST/SP BIN CONTINUED ON P&ID 3200-25J-021 P1 H, P1 P1 H, P2 L, P2 P1 C2-3240-DC-042 LHS FAULT J/SP A,B A,B RHS, P1 A,B RHS HH, P1 H, P2 FAULT P1 DUCTING C2-3240-CV-025 C2-3240-CV-041 EXPERT SYSTEM A,B C2-3240-SC-022 C2-3240-SL-032 SIZE: MOTOR: C2-3240-FA-099 C.O. SURGE BIN DUST COLLECTOR FAN SIZE: C2-3240-ST-116 COARSE SCREEN O/S CHUTE C2-3240-ST-116 SIZE: MOTOR: C2-3240-SC-022 C.O. SCREEN NO. 6 SIZE: MOTOR: C2-3240-FE-027 C.O. SCREEN FEEDER NO. 6 C2-3240-ST-082 TO ATMOSPHERE C2-3240-BN-016 3220-AP-1051-C1A-2"-N C2-3240-DC-099 SIZE:650t LIVE C2-3240-BN-016 C.O. SURGE BIN NO.6 AG KM LT ISSUED FOR CLIENT REVIEW 23-Dec-11 B RP ISSUED FOR COMBINED REVIEW 23-Jun-11 A 12/23/2011 K.MUNDY A. GUNSON T. OH L. TAMELIN 1/3/2012 1:12:54 PM WBS: 3240 B PIPING AND INSTRUMENTATION DIAGRAM SCREENING BUILDING 3200-25J-016 COARSE ORE FEEDER AND SCREEN NO. 6 C2-3240-ST-092 C2-3240-FE-027 SIZE: C2-3240-ST-112 C.O. SCREEN U/S CHUTE C2-3240-ST-112 SIZE: C2-3240-SL-032 C.O. SCREEN FEEDER NO.6 VOLUMETRIC BELT SCALE SIZE: C2-3240-DC-099 C.O. SURGE BIN DUST COLLECTOR (DRY) SIZE: C2-3240-ST-092 C.O. SCREEN FEED CHUTE SIZE: C2-3240-ST-082 C.O. SURGE BIN FEEDER SKIRT C2-3240-FA-099 3240-AP-1284-C1A-2"-N ES V V V V V V ES ES ES ES V V V V V V V V V ES V V V V V V C2-3240-FA-100 C2-3240-DC-100 TO ATMOSPHERE SIZE: C2-3240-DC-100 C.O. SURGE BIN DUST COLLECTOR (DRY) SIZE: MOTOR: C2-3240-FA-100 C.O. SURGE BIN DUST COLLECTOR FAN ES D 4 F B A 3 2 1 5 6 8 E 7 C REV. APPROVED CHK. DES. REV. DATE REVISION DESCRIPTION CLIENT LEAD ENGINEER SCALE DRAWING NUMBER CHECK DESIGN CHECK DRAWING DESIGNED BY DRAWN BY APPROVAL DATE APPROVAL DATE APPROVED CHK. DES. REV. DATE REVISION DESCRIPTION REFERENCE DRAWING No. 1:100 0 1:200 5m 10m 0 5m 10m 15m 20m 1:500 10m 0 20m 30m 40m 50m 1:1000 0 100m 50m 1:20 0 0.5m 1m 1.5m 2m 0 1:25 0.5m 1m 1.5m 1:33 1/3 2.5m 2m 0 1m 2m 3m 0 1:50 1m 2m 3m 4m 5m CAD FILE NAME: P:0CAD000SPEM** MODEL UPDATED: DWG. FILE UPDATED: MANUAL CHANGES MADE: YES NO YES NO YES NO PROJECT MANAGER ENGINEERING MANAGER AREA PROJECTENGINEER REFERENCE DRAWINGS SAFETY SHARE: APPROVAL DATE CONTRACT NO. SAFETY SHARE : BA6CVA1.IGR NOTICE: THIS DRAWING HAS NOT BEEN PUBLISHED AND IS THE SOLE PROPERTY OF FLUOR AND IS LENT TO THE BORROWER FOR THEIR CONFIDENTIAL USE ONLY, AND IN CONSIDERATION OF THE LOAN OF THIS DRAWING, THE BORROWER PROMISES AND AGREES TO RETURN IT UPON REQUEST AND AGREES THAT IT WILL NOT BE REPRODUCED, COPIED LENT OR OTHERWISE DISPOSED OF DIRECTLY OR INDIRECTLY, NOR USED FOR ANY OTHER PURPOSE OTHER THAN WHICH IT IS FURNISHED. NONE Apr 2011 240K-C2- ES FEEDER AFD DRIVE 3240 31681 H TE BRG FRONT 3240 31681 G TE BRG REAR 3240 31681 HS 3240 31681 XA FAULT 3240 31681 II VENDOR A TO ? J/SP 3240 01621 XA + 3240 31681 H TI BRG FRONT H, P2 HH, P1 3240 31681 G TI BRG REAR H, P2 HH, P1 DUCTING DUCTING CONVEYOR CONVEYOR DUST DUST COLLECTOR, C2-3240-DC-043 3993 3200-25J-020 DUST DUST COLLECTOR, C2-3240-DC-044 3994 3200-25J-020 RHS A-D 3240 01623 PDAH 3240 01622 PDAH
  • 26.
    3960 01702 PI 3220 01703 PIT 3220 01703 PI L, P2 3220 01791 HS J/SP 3220 01791 JI 3220 01791H TI BRG FRONT H, P2 HH, P1 3220 01791 G TI 3220 01791 H TE 3220 01791 G TE 3220 01791 XA 3220 01791 II 3220 01781 XA 3220 01781 H TI BRG FRONT H, P2 HH, P1 3220 01781 G TI 3220 01781 HS J/SP 3220 01781 JI 3220 01781 H TE 3220 01781 G TE 3220 01781 II TO DRAIN CLOSED LOOP CWR HEADER 3425 3200-25J-084 PLANT AIR HPGR SURGE BIN DUST COLLECTOR, C2-3230-DC-072 2996 3200-25J-050 PLANT AIR HPGR BIN DUST COLLECTOR, C2-3230-DC-073 2997 3200-25J-052 PLANT AIR DISTRIBUTION 2985 3900-25J-021 PLANT AIR COARSE ORE SCREENING DUST COLLECTORS 2987 3200-25J-020 PLANT AIR SECONDARY CRUSHER DUST COLLECTORS 2988 3200-25J-047 PLANT AIR SECONDARY CRUSHER SURGE BIN DUST 2989 3200-25J-032 PLANT AIR SECONDARY CRUSHER SURGE BIN DUST 2990 3200-25J-031 PLANT AIR SECONDARY CRUSHER SURGE BIN DUST 2991 3200-25J-027 PLANT AIR SECONDARY CRUSHER SURGE BIN DUST 2992 3200-25J-035 PLANT AIR SECONDARY CRUSHER SURGE BIN DUST 2993 3200-25J-034 PLANT AIR SECONDARY CRUSHER SURGE BIN DUST 2994 3200-25J-033 PLANT AIR HPGR SURGE BIN DUST COLLECTOR, C2-3230-DC-071 2995 3200-25J-048 PLANT AIR HPGR BIN DUST COLLECTOR, C2-3230-DC-074 2998 3200-25J-054 PLANT AIR C.O. SURGE BIN DUST COLLECTOR, C2-3240-DC-099 3009 3200-25J-021 PLANT AIR C.O. SURGE BIN DUST COLLECTOR, C2-3240-DC-100 3010 3200-25J-022 PLANT AIR HPGR BIN DUST COLLECTOR, C2-3230-DC-181 2999 3200-25J-056 PLANT AIR HPGR BIN DUST COLLECTOR, C2-3230-DC-182 3000 3200-25J-058 PLANT AIR HPGR BIN DUST COLLECTOR, C2-3230-DC-183 3001 3200-25J-060 PLANT AIR HPGR BIN DUST COLLECTOR, C2-3230-DC-184 3002 TO ATM TO DRAIN VENDOR VENDOR DISCHARGE PRESSURE @ MAXIMUM 758 KPA (G) OPERATING 690 KPA (G) MINIMUM 620 KPA (G) AUTO DRAIN DISCHARGE PRESSURE @ MAXIMUM 758 KPA (G) OPERATING 690 KPA (G) MINIMUM 620 KPA (G) SET @ 862.00 KPA (G) DIRT POCKET CIVIL BRG REAR H, P2 HH, P1 BRG REAR H, P2 HH, P1 FAULT FAULT V V V V V 3220-AP-1028-C1A-6"-N 3220-AP-1027-C1A-6"-N 4"x3" 6"x5" 4"x3" 4"x3" 6"x5" 4"x3" AG KM LT ISSUED FOR CLIENT REVIEW 23-Dec-11 B RP ISSUED FOR COMBINED REVIEW 13-Jul-11 A 12/23/2011 K.MUNDY A. GUNSON T. OH L. TAMELIN 1/3/2012 1:15:35 PM WBS: 3220 B PIPING AND INSTRUMENTATION DIAGRAM SECONDARY CRUSHING 3200-25J-017 PLANT AIR BU- BU- BU- 3220-AP-1030-C1A-6"-N 3220-AP-1101-C1A-1"-N 3220-AP-1099-C1A-1"-N 3220-AP-1098-C1A-1"-N 3220-AP-1097-C1A-1"-N 3220-AP-1096-C1A-1"-N BA- BA- BA- BA- BA- BA- 3220-AP-1095-C1A-1"-N BA- 3220-AP-1094-C1A-1"-N BA- 3220-AP-1093-C1A-1"-N 3220-AP-1092-C1A-1"-N BA- 3220-AP-1077-C1A-1"-N BA- BA- 3220-AP-1076-C1A-1"-N BA- BA- BA- BA- BA- BA- BA- BA- BA- BA- BA- BA- BA- BA- BA- BA- BA- BA- BA- BA- BA- BA- BA- 3220-AP-1027-C1A-6"-N 3220-AP-1041-C1A-2"-N 3220-AP-1057-C1A-2"-N 3220-AP-1064-C1A-1"-N C2-3220-CO-021 3220-AP-1065-C1A-2"-N V 3220-AP-1100-C1A-1"-N 3220-AP-1078-C1A-2"-N 3220-AP-1080-C1A-1"-N 3220-AP-1079-C1A-1"-N 3220-AP-1081-C1A-2"-N 3220-AP-1082-C1A-2"-N 3220-AP-1083-C1A-1"-N 3220-AP-1034-C1A-1"-N C2-3220-CO-022 2"x1" 6"x3" BU- 3220-AP-1052-C1A-2"-N 3220-AP-1051-C1A-2"-N 3220-AP-1050-C1A-1"-N BA- BA- BA- CH- BU- 6"x4" 1/2" BA- BA- BA- 3220-AP-1049-C1A-2"-N 3220-AP-1048-C1A-2"-N 3220-AP-1056-C1A-1"-N C2-3220-VS-011 V DRAIN V 3960 01701 PSV + V V V V 3/4" 3220-AP-1046-C1A-1"-N 3220-AP-1045-C1A-1"-N 3220-AP-1044-C1A-1"-N 3220-AP-1043-C1A-1"-N 3220-AP-1042-C1A-1"-N 3220-AP-1059-C1A-1"-N 3220-AP-1058-C1A-1"-N 3220-AP-1061-C1A-1"-N 3220-AP-1060-C1A-1"-N 3220-AP-1063-C1A-1"-N 3220-AP-1062-C1A-1"-N 3220-AP-1072-C1A-1"-N 3220-AP-1071-C1A-1"-N 3220-AP-1070-C1A-1"-N 3220-AP-1069-C1A-1"-N 3220-AP-1068-C1A-1"-N 3220-AP-1067-C1A-1"-N 3220-AP-1066-C1A-1"-N 3220-AP-1090-C1A-1"-N 3220-AP-1088-C1A-1"-N 3220-AP-1091-C1A-2"-N 3220-AP-1089-C1A-2"-N SIZE: MATERIAL: CAPACITY: TRIM: C2-3220-VS-011 SEC./TERT. CRUSHING PLANT AIR RECEIVER SIZE: MATERIAL: MOTOR: C2-3220-CO-022 SEC./TERT. CRUSHING PLANT AIR COMPRESSOR SIZE: MATERIAL: MOTOR: C2-3220-CO-021 SEC./TERT. CRUSHING PLANT AIR COMPRESSOR D 4 F B A 3 2 1 5 6 8 E 7 C REV. APPROVED CHK. DES. REV. DATE REVISION DESCRIPTION CLIENT LEAD ENGINEER SCALE DRAWING NUMBER CHECK DESIGN CHECK DRAWING DESIGNED BY DRAWN BY APPROVAL DATE APPROVAL DATE APPROVED CHK. DES. REV. DATE REVISION DESCRIPTION REFERENCE DRAWING No. 1:100 0 1:200 5m 10m 0 5m 10m 15m 20m 1:500 10m 0 20m 30m 40m 50m 1:1000 0 100m 50m 1:20 0 0.5m 1m 1.5m 2m 0 1:25 0.5m 1m 1.5m 1:33 1/3 2.5m 2m 0 1m 2m 3m 0 1:50 1m 2m 3m 4m 5m CAD FILE NAME: P:0CAD000SPEM** MODEL UPDATED: DWG. FILE UPDATED: MANUAL CHANGES MADE: YES NO YES NO YES NO PROJECT MANAGER ENGINEERING MANAGER AREA PROJECTENGINEER REFERENCE DRAWINGS SAFETY SHARE: APPROVAL DATE CONTRACT NO. SAFETY SHARE : BA6CVA1.IGR NOTICE: THIS DRAWING HAS NOT BEEN PUBLISHED AND IS THE SOLE PROPERTY OF FLUOR AND IS LENT TO THE BORROWER FOR THEIR CONFIDENTIAL USE ONLY, AND IN CONSIDERATION OF THE LOAN OF THIS DRAWING, THE BORROWER PROMISES AND AGREES TO RETURN IT UPON REQUEST AND AGREES THAT IT WILL NOT BE REPRODUCED, COPIED LENT OR OTHERWISE DISPOSED OF DIRECTLY OR INDIRECTLY, NOR USED FOR ANY OTHER PURPOSE OTHER THAN WHICH IT IS FURNISHED. NONE Apr 2011 240K-C2- CLOSED LOOP CWS HEADER 2978 3200-25J-083 3220-WF-1231-C1A-2"-N 3220-WF-1230-C1A-2"-N 3220-WF-1232-C1A-4"-N 3220-AP-1073-C1A-2"-N 3220-AP-1035-C1A-2"-N 3220-AP-1036-C1A-2"-N 3220-AP-1037-C1A-2"-N 3220-AP-1038-C1A-2"-N 3220-AP-1039-C1A-2"-N 3220-AP-1040-C1A-2"-N COLLECTOR, C2-3220-DC-132 COLLECTOR, C2-3220-DC-131 COLLECTOR, C2-3220-DC-130 COLLECTOR, C2-3220-DC-067 COLLECTOR, C2-3220-DC-066 COLLECTOR, C2-3220-DC-065 3220-AP-1055-C1A-2"-N 3220-AP-1054-C1A-2"-N 3220-AP-1053-C1A-2"-N 3220-AP-1084-C1A-2"-N 3220-AP-1087-C1A-2"-N 3220-AP-1086-C1A-2"-N 3220-AP-1085-C1A-2"-N 3220-AP-1047-C1A-2"-N PLANT AIR SECONDARY CRUSHER SURGE BIN DUST 3767 3200-25J-038 PLANT AIR SECONDARY CRUSHER SURGE BIN DUST 3771 3200-25J-039 COLLECTOR, C2-3220-DC-134 COLLECTOR, C2-3220-DC-136 3220-AP- -C1A-2"-N 3220-AP- -C1A-2"-N VENDOR 3220-WF-1229-C1A-4"-N 3220-WF-1233-C1A-4"-N 3220-AP-1031-C1A-4"-N 3220-WF-1232-C1A-4"-N 3200-WF-1181-C1A-4"-N 3220-AP-1029-C1G-3"-N PLANT AIR C.O. SURGE BIN DUST COLLECTOR, 1805 3200-25J-011 PLANT AIR C.O. SURGE BIN DUST COLLECTOR, 1972 3200-25J-012 PLANT AIR C.O. SURGE BIN DUST COLLECTOR, 1986 3200-25J-013 PLANT AIR C.O. SURGE BIN DUST COLLECTOR, 1991 3200-25J-014 PLANT AIR C.O. SURGE BIN DUST COLLECTOR, 2007 3200-25J-015 PLANT AIR C.O. SURGE BIN DUST COLLECTOR, 2018 3200-25J-016 PLANT AIR COARSE ORE RECLAIM DUST COLLECTORS 2940 3200-25J-007 3220-AP- -C1A-2"-N 3220-AP- -C1A-2"-N C2-3240-DC-061/062 C2-3240-DC-063/064 C2-3240-DC-241/242 C2-3240-DC-243/244 C2-3240-DC-097/098 C2-3240-DC-099/100
  • 27.
    T3 T3 AFD 3240 01906 PI L, P2 3240 01905 FI M M 3240 01904 PIT 3240 01906 PIT 3240 01901 FIT 3240 01903 FIT 3240 01985 HS M 3240 01902 LIT 3240 01901 FIC 3240 01905 FIT 3240 01985 II 3240 01902 LE 3240 01984 II 3240 01984 HS 3240 01985 XA 3240 01904 PI 3240 01903 FI 3240 01902 LIC 3240 01984 XA SUMPCONTENTS TERTIARY CRUSHER COOLING WATER RETURN 3672 3200-25J-079 PROCESS WATER 2092 3900-25J-014 SUMP CONTENTS COARSE SCREENING AREA SUMP PUMP EAST, 3297 3200-25J-024 SUMP CONTENTS COARSE SCREENING AREA SUMP PUMP WEST, 3296 3200-25J-023 SUMP CONTENTS CYCLONE FEED SUMPS, C2-3320-BX-101 TO 601 3250 3300-25J-036 GLAND WATER DISTRIBUTION 3251 3900-25J-023 PUMPS, C2-3230-PP-029/059 C2-3240-PP-022 AFD L, P2 LL, P1 L, P2 FAULT L, P2 LL, P1 FAULT J/SP J/SP C2-3240-PP-021 AG KM LT ISSUED FOR CLIENT REVIEW 23-Dec-11 B NOT USED A 12/23/2011 K.MUNDY A. GUNSON T. OH L. TAMELIN 1/3/2012 11:16:58 AM WBS: 3240 B PIPING AND INSTRUMENTATION DIAGRAM SCREENING BUILDING 3200-25J-019 COARSE ORE SCREENING EFFLUENT ES 3240-SL-1003-C1B-10"-N 3240-WG-1065-C1A-2"-N 3240-SL-1008-C1B-6"-N 3240-SL-1790-C1B-10"-N ES 3"x2" C2-3240-PP-024 3"x2" C2-3240-BX-023 3240 01901 FE + 3240 01901 FV + 3240 01903 FE + 3"x2" 3240-SL-1007-C1B-6"-N C2-3240-PP-023 2"x1-1/4" ES 3"x2" ES SIZE: MATERIAL: MOTOR: C2-3240-PP-023 COARSE SCREEN EFFLUENT PUMP NO. 1 3240 01905 FE + SIZE: MATERIAL: MOTOR: C2-3240-PP-024 COARSE SCREEN EFFLUENT PUMP NO. 2 SIZE: 25 m3 MATERIAL: CAPACITY: TRIM:3240-SL-1009-C1B-N C2-3240-BX-023 COARSE SCREEN EFFLUENT PUMPBOX NO. 1 2"x1-1/4" 3240-SL-1005-C1B-10"-N 3240-WG-1032-C1A-2"-N 3240-WR-1335-C1A-3"-N 3240-SL-1004-C1B-10"-N 3240-SL-1006-C1B-10"-N D 4 F B A 3 2 1 5 6 8 E 7 C REV. APPROVED CHK. DES. REV. DATE REVISION DESCRIPTION CLIENT LEAD ENGINEER SCALE DRAWING NUMBER CHECK DESIGN CHECK DRAWING DESIGNED BY DRAWN BY APPROVAL DATE APPROVAL DATE APPROVED CHK. DES. REV. DATE REVISION DESCRIPTION REFERENCE DRAWING No. 1:100 0 1:200 5m 10m 0 5m 10m 15m 20m 1:500 10m 0 20m 30m 40m 50m 1:1000 0 100m 50m 1:20 0 0.5m 1m 1.5m 2m 0 1:25 0.5m 1m 1.5m 1:33 1/3 2.5m 2m 0 1m 2m 3m 0 1:50 1m 2m 3m 4m 5m CAD FILE NAME: P:0CAD000SPEM** MODEL UPDATED: DWG. FILE UPDATED: MANUAL CHANGES MADE: YES NO YES NO YES NO PROJECT MANAGER ENGINEERING MANAGER AREA PROJECTENGINEER REFERENCE DRAWINGS SAFETY SHARE: APPROVAL DATE CONTRACT NO. SAFETY SHARE : BA6CVA1.IGR NOTICE: THIS DRAWING HAS NOT BEEN PUBLISHED AND IS THE SOLE PROPERTY OF FLUOR AND IS LENT TO THE BORROWER FOR THEIR CONFIDENTIAL USE ONLY, AND IN CONSIDERATION OF THE LOAN OF THIS DRAWING, THE BORROWER PROMISES AND AGREES TO RETURN IT UPON REQUEST AND AGREES THAT IT WILL NOT BE REPRODUCED, COPIED LENT OR OTHERWISE DISPOSED OF DIRECTLY OR INDIRECTLY, NOR USED FOR ANY OTHER PURPOSE OTHER THAN WHICH IT IS FURNISHED. NONE Apr 2011 240K-C2-
  • 28.
    M 3240 02082 HS 3240 02083 XA 3240 02083 HS ST/SP 3240 02083 II 3240 02082 II 3240 02082 XA DUST C2-3240-ST-055 2093 3200-25J-011 FAULT ST/SP FAULT C2-3240-FA-231 TO ATMOSPHERE AG KM LT ISSUEDFOR CLIENT REVIEW 23-Dec-11 B RP ISSUED FOR COMBINED REVIEW 23-Jun-11 A 12/23/2011 K.MUNDY A. GUNSON T. OH L.TAMELIN 1/3/2012 1:18:25 PM WBS: 3240 B PIPING AND INSTRUMENTATION DIAGRAM SCREENING BUILDING 3200-25J-020 COARSE ORE SCREEN AREA DUST CONTROL SIZE: MOTOR: C2-3240-ZV-231 COARSE SCREEN DUST COLLECTOR RO. VALVE NO. 1 C2-3240-DC-231 D 4 F B A 3 2 1 5 6 8 E 7 C REV. APPROVED CHK. DES. REV. DATE REVISION DESCRIPTION CLIENT LEAD ENGINEER SCALE DRAWING NUMBER CHECK DESIGN CHECK DRAWING DESIGNED BY DRAWN BY APPROVAL DATE APPROVAL DATE APPROVED CHK. DES. REV. DATE REVISION DESCRIPTION REFERENCE DRAWING No. 1:100 0 1:200 5m 10m 0 5m 10m 15m 20m 1:500 10m 0 20m 30m 40m 50m 1:1000 0 100m 50m 1:20 0 0.5m 1m 1.5m 2m 0 1:25 0.5m 1m 1.5m 1:33 1/3 2.5m 2m 0 1m 2m 3m 0 1:50 1m 2m 3m 4m 5m CAD FILE NAME: P:0CAD000SPEM** MODEL UPDATED: DWG. FILE UPDATED: MANUAL CHANGES MADE: YES NO YES NO YES NO PROJECT MANAGER ENGINEERING MANAGER AREA PROJECTENGINEER REFERENCE DRAWINGS SAFETY SHARE: APPROVAL DATE CONTRACT NO. SAFETY SHARE : BA6CVA1.IGR NOTICE: THIS DRAWING HAS NOT BEEN PUBLISHED AND IS THE SOLE PROPERTY OF FLUOR AND IS LENT TO THE BORROWER FOR THEIR CONFIDENTIAL USE ONLY, AND IN CONSIDERATION OF THE LOAN OF THIS DRAWING, THE BORROWER PROMISES AND AGREES TO RETURN IT UPON REQUEST AND AGREES THAT IT WILL NOT BE REPRODUCED, COPIED LENT OR OTHERWISE DISPOSED OF DIRECTLY OR INDIRECTLY, NOR USED FOR ANY OTHER PURPOSE OTHER THAN WHICH IT IS FURNISHED. NONE Apr 2011 240K-C2- M 3240 02084 HS 3240 02085 XA 3240 02085 HS ST/SP 3240 02085 II 3240 02084 II 3240 02084 XA FAULT ST/SP FAULT C2-3240-FA-232 TO ATMOSPHERE C2-3240-DC-232 M 3240 02086 HS 3240 02087 XA 3240 02087 HS ST/SP 3240 02087 II 3240 02086 II 3240 02086 XA FAULT ST/SP FAULT C2-3240-FA-233 TO ATMOSPHERE C2-3240-DC-233 M 3240 02088 HS 3240 02089 XA 3240 02089 HS ST/SP 3240 02089 II 3240 02088 II 3240 02088 XA FAULT ST/SP FAULT C2-3240-FA-234 TO ATMOSPHERE C2-3240-DC-234 C2-3240-ZV-231 C2-3240-ZV-232 C2-3240-ZV-233 C2-3240-ZV-234 SIZE: MOTOR: C2-3240-ZV-232 COARSE SCREEN DUST COLLECTOR RO. VALVE NO. 2 SIZE: MOTOR: C2-3240-ZV-233 COARSE SCREEN DUST COLLECTOR RO. VALVE NO. 3 SIZE: MOTOR: C2-3240-ZV-234 COARSE SCREEN DUST COLLECTOR RO. VALVE NO. 4 SIZE: MATERIAL: MOTOR: C2-3240-DC-232 COARSE SCREEN DUST COLLECTOR NO. 2 SIZE: MATERIAL: MOTOR: C2-3240-DC-233 COARSE SCREEN DUST COLLECTOR NO. 3 SIZE: MATERIAL: MOTOR: C2-3240-DC-234 COARSE SCREEN DUST COLLECTOR NO. 4 SIZE: C2-3240-FA-232 COARSE SCREEN DUST COLLECTOR FAN NO. 2 SIZE: C2-3240-FA-233 COARSE SCREEN DUST COLLECTOR FAN NO. 3 SIZE: C2-3240-FA-234 COARSE SCREEN DUST COLLECTOR FAN NO. 4 M 3240 02092 HS 3240 02093 XA 3240 02093 HS ST/SP 3240 02093 II 3240 02092 II 3240 02092 XA FAULT ST/SP FAULT C2-3240-FA-042 TO ATMOSPHERE SIZE: MOTOR: C2-3240-ZV-042 COARSE SCREEN DUST COLLECTOR RO. VALVE NO. 5 C2-3240-DC-042 M 3240 02094 HS 3240 02095 XA 3240 02095 HS ST/SP 3240 02095 II 3240 02094 II 3240 02094 XA FAULT ST/SP FAULT C2-3240-FA-043 TO ATMOSPHERE C2-3240-DC-043 M 3240 02096 HS 3240 02097 XA 3240 02097 HS ST/SP 3240 02097 II 3240 02096 II 3240 02096 XA FAULT ST/SP FAULT C2-3240-FA-044 TO ATMOSPHERE C2-3240-DC-044 M 3240 02098 HS 3240 02099 XA 3240 02099 HS ST/SP 3240 02099 II 3240 02098 II 3240 02098 XA FAULT ST/SP FAULT C2-3240-FA-045 TO ATMOSPHERE C2-3240-DC-045 C2-3240-ZV-042 C2-3240-ZV-043 C2-3240-ZV-044 C2-3240-ZV-045 SIZE: MOTOR: C2-3240-ZV-043 COARSE SCREEN DUST COLLECTOR RO. VALVE NO. 6 SIZE: MOTOR: C2-3240-ZV-044 COARSE SCREEN DUST COLLECTOR RO. VALVE NO. 7 SIZE: MOTOR: C2-3240-ZV-045 COARSE SCREEN DUST COLLECTOR RO. VALVE NO. 8 SIZE: MATERIAL: MOTOR: C2-3240-DC-043 COARSE SCREEN DUST COLLECTOR NO. 6 SIZE: MATERIAL: MOTOR: C2-3240-DC-044 COARSE SCREEN DUST COLLECTOR NO. 7 SIZE: MATERIAL: MOTOR: C2-3240-DC-045 COARSE SCREEN DUST COLLECTOR NO. 8 SIZE: C2-3240-FA-043 COARSE SCREEN DUST COLLECTOR FAN NO. 6 SIZE: C2-3240-FA-044 COARSE SCREEN DUST COLLECTOR FAN NO. 7 SIZE: C2-3240-FA-045 COARSE SCREEN DUST COLLECTOR FAN NO. 8 SIZE: C2-3240-FA-231 COARSE SCREEN DUST COLLECTOR FAN NO. 1 SIZE: MATERIAL: MOTOR: C2-3240-DC-231 COARSE SCREEN DUST COLLECTOR NO. 1 SIZE: MATERIAL: MOTOR: C2-3240-DC-042 COARSE SCREEN DUST COLLECTOR NO. 5 SIZE: C2-3240-FA-042 COARSE SCREEN DUST COLLECTOR FAN NO. 5 TERTIARY CRUSHER SURGE BIN FEED CONVEYOR NO. 1, 3434 3200-25J-025 TERTIARY CRUSHER SURGE BIN FEED CONVEYOR NO. 1, 3435 3200-25J-025 TERTIARY CRUSHER SURGE BIN FEED CONVEYOR NO. 1, 3436 3200-25J-025 TERTIARY CRUSHER SURGE BIN FEED CONVEYOR NO. 1, 3437 3200-25J-025 TERTIARY CRUSHER SURGE BIN FEED CONVEYOR NO. 2, 3438 3200-25J-026 TERTIARY CRUSHER SURGE BIN FEED CONVEYOR NO. 2, 3439 3200-25J-026 TERTIARY CRUSHER SURGE BIN FEED CONVEYOR NO. 2, 3440 3200-25J-026 TERTIARY CRUSHER SURGE BIN FEED CONVEYOR NO. 2, 3441 3200-25J-026 C2-3240-CV-031 C2-3240-CV-031 C2-3240-CV-031 C2-3240-CV-031 C2-3240-CV-041 C2-3240-CV-041 C2-3240-CV-041 C2-3240-CV-041 DUST C2-3240-ST-056 2094 3200-25J-012 DUST C2-3240-ST-057 2095 3200-25J-013 DUST C2-3240-ST-058 2096 3200-25J-014 DUST C2-3240-ST-091 3239 3200-25J-015 DUST C2-3240-ST-092 2099 3200-25J-016 DUST C2-3240-ST-093 3245 3200-25J-021 DUST C2-3240-ST-094 2101 3200-25J-022 DUST C2-3240-ST-061 4172 3200-25J-011 DUST C2-3240-ST-062 4173 3200-25J-012 DUST C2-3240-ST-063 3429 3200-25J-013 DUST C2-3240-ST-064 3430 3200-25J-014 DUST C2-3240-ST-115 3991 3200-25J-015 DUST C2-3240-ST-116 3993 3200-25J-016 DUST C2-3240-ST-117 3995 3200-25J-021 DUST C2-3240-ST-118 3997 3200-25J-022 DUST C2-3240-ST-071 3982 3200-25J-011 DUST C2-3240-ST-072 3984 3200-25J-012 DUST C2-3240-ST-073 3987 3200-25J-013 DUST C2-3240-ST-074 3989 3200-25J-014 DUST C2-3240-ST-111 3992 3200-25J-015 DUST C2-3240-ST-112 3994 3200-25J-016 DUST C2-3240-ST-113 3996 3200-25J-021 DUST C2-3240-ST-114 3998 3200-25J-022 DUST DUST CONTROL POINT C2-3230-SV-028 4177 3200-25J-076 AP AP AP AP AP AP AP AP VENDOR VENDOR VENDOR VENDOR VENDOR VENDOR VENDOR VENDOR PLANT AIR DISTRIBUTION 2987 3200-25J-017 C2-3240-DC-231 3220-AP-16741-C1A-2"-N C2-3240-DC-232 C2-3240-DC-233 C2-3240-DC-234 C2-3240-DC-042 C2-3240-DC-043 C2-3240-DC-044 C2-3240-DC-045 NOTE 1 NOTES: 1. PLANT AIR TO DISTRIBUTE TO DUST COLLECTORS DETAILS TBD. 3240 02001 PDAH 3240 02002 PDAH 3240 02003 PDAH 3240 02004 PDAH 3240 02011 PDAH 3240 02012 PDAH 3240 02013 PDAH 3240 02014 PDAH DUST DUST COLLECTOR POINTS C2-3230-ST-076 1967 3200-25J-074 DUST DUST CONTROL POINT C2-3230-CV-018 3257 3200-25J-075 DUST C2-3230-ST-075 1361 3200-25J-073
  • 29.
    D 4 F B A 3 2 1 5 68 E 7 C REV. APPROVED CHK. DES. REV. DATE REVISION DESCRIPTION CLIENT LEAD ENGINEER SCALE DRAWING NUMBER CHECK DESIGN CHECK DRAWING DESIGNED BY DRAWN BY APPROVAL DATE APPROVAL DATE APPROVED CHK. DES. REV. DATE REVISION DESCRIPTION REFERENCE DRAWING No. 1:100 0 1:200 5m 10m 0 5m 10m 15m 20m 1:500 10m 0 20m 30m 40m 50m 1:1000 0 100m 50m 1:20 0 0.5m 1m 1.5m 2m 0 1:25 0.5m 1m 1.5m 1:33 1/3 2.5m 2m 0 1m 2m 3m 0 1:50 1m 2m 3m 4m 5m CAD FILE NAME: P:0CAD000SPEM** MODEL UPDATED: DWG. FILE UPDATED: MANUAL CHANGES MADE: YES NO YES NO YES NO PROJECT MANAGER ENGINEERING MANAGER AREA PROJECTENGINEER REFERENCE DRAWINGS SAFETY SHARE: APPROVAL DATE CONTRACT NO. SAFETY SHARE : BA6CVA1.IGR NOTICE: THIS DRAWING HAS NOT BEEN PUBLISHED AND IS THE SOLE PROPERTY OF FLUOR AND IS LENT TO THE BORROWER FOR THEIR CONFIDENTIAL USE ONLY, AND IN CONSIDERATION OF THE LOAN OF THIS DRAWING, THE BORROWER PROMISES AND AGREES TO RETURN IT UPON REQUEST AND AGREES THAT IT WILL NOT BE REPRODUCED, COPIED LENT OR OTHERWISE DISPOSED OF DIRECTLY OR INDIRECTLY, NOR USED FOR ANY OTHER PURPOSE OTHER THAN WHICH IT IS FURNISHED. NONE Apr 2011 240K-C2- M 3240 02181 II 3240 02116 LI 3240 02105 ZSH 3240 02108 XA P1 3240 02103 SDI 3240 02118 VI A-D 3240 02104 ZSHH 3240 02108 A XS 3240 02118 VT A-D 3240 02104 ZSH 3240 02103 B SI 3240 02118 VE 3240 02116 A LI 3240 02115 A LAH 3240 02116 LT 3240 02116 LE 3240 02182 HS 3240 02107 A TI 3240 02107 A TE HH, P1 H, P2 3240 02107 B TI 3240 02110 WI 3240 02115 A LSH 3240 02106 A TI HH, P1 H, P2 3240 02106 A TE 3240 02110 WIT 3240 02182 XA 3240 02104 ZAHH 3240 02110 WE LHS 3240 02182 II 3240 02110 SE 3240 02107 B TE HH, P1 H, P2 3240 02106 B TI HH, P1 H, P2 3240 02106 B TE 3240 02117 LAL 3240 02119 LAH P1 3240 02105 ZAHH LHS, P1 3240 02117 LSL 3240 02103 B ST 3240 02181 HS 3240 02101 HSA 3240 02119 LSH 3240 02103 B SE 3240 02102 HSA 3240 02101 HSS 3240 02181 XA 3240 02105 ZSHH 3240 02102 HSS RHS P1 FAULT J/SP RHS, P1 EXPERT SYSTEM RHS A,B P1 ST/SP A,B H, P1 FAULT DUCTING BIN CONTINUED ON P&ID 3200-25J-022 C2-3240-ST-113 C2-3240-SC-023 C2-3240-ST-093 C2-3240-SL-033 C2-3240-ST-083 3220-AP1049-C1A-2"-N C2-3240-DC-197 C2-3240-FA-197 C2-3240-FE-028 C2-3240-BN-017 H, P2 L, P2 LHS RHS A,B P1 P1 LHS A,B A,B A,B HH, P1 H, P2 SIZE: C2-3240-ST-093 C.O. SCREEN FEED CHUTE SIZE: C2-3240-ST-113 C.O. SCREEN NO.7 U/S CHUTE TO ATMOSPHERE SIZE: C2-3240-ST-083 C.O. SURGE BIN NO.7 FEEDER SKIRT SIZE: C2-3240-SL-033 C.O. SCREEN FEEDER NO.7 VOLUMETRIC BELT SCALE SIZE: C2-3240-DC-197 C.O SURGE BIN DUST COLLECTOR (DRY) SIZE:650t LIVE C2-3240-BN-017 C.O. SURGE BIN NO.7 3240 02115 A LE 3240 02115 B LE 3240 02115 B LSH 3240 02115 B LAH P1 3240 02103 A SE 3240 02103 A ST 3240 02103 A SI 3240 02108 B XA TEAR C2-3240-DC-042 C2-3240-CV-025 COARSE SCREEN O/S COARSE SCREEN O/S CONVEYOR NO. 2, 1944 3200-25J-024 COARSE SCREEN U/S TERTIARY CRUSHER SURGE BIN FEED CONVEYOR NO. 2, 1910 3200-25J-026 C2-3240-CV-041 PLANT AIR 2031 3200-25J-017 BIN CONTINUED ON P&ID 3200-25J-016 T1 V V ES V V V V ES ES V ES ES V V AG KM LT ISSUED FOR CLIENT REVIEW 23-Dec-11 B RP ISSUED FOR COMBINED REVIEW 23-Jun-11 A 12/23/2011 K.MUNDY A. GUNSON T. OH L. TAMELIN 1/3/2012 11:21:36 AM WBS: 3240 B PIPING AND INSTRUMENTATION DIAGRAM SCREENING BUILDING 3200-25J-021 COARSE ORE FEEDER AND SCREEN NO. 7 RHS LHS A,B RHS LHS SIZE: C2-3240-ST-117 COARSE SCREEN NO.7 O/S CHUTE C2-3240-ST-117 A,B A,B SEC. CRUSHER PRODUCT SEC. CRUSHER DISCHARGE CONV. NO. 2, C2-3220-CV-026 3240 3200-25J-016 SEC. CRUSHER PRODUCT C2-3240-BN-018 3244 3200-25J-022 DUST COARSE SCREEN DUST COLLECTOR NO. 5, 3245 3200-25J-020 SIZE: MOTOR: C2-3240-FA-197 C.O. SURGE BIN DUST COLLECTOR FAN SIZE: MOTOR: C2-3240-SC-023 C.O. SCREEN NO. 7 SIZE: MOTOR: C2-3240-FE-028 C.O. SCREEN FEEDER NO. 7 V V RHS LHS V V ES V V V V V V 3240 02105 ZAH 3240 02104 ZAH P2 P2 V V M 3240 02183 II 3240 02183 HS 3240 02183 XA ST/SP FAULT C2-3240-DC-198 C2-3240-FA-198 TO ATMOSPHERE SIZE: C2-3240-DC-198 C.O. SURGE BIN DUST COLLECTOR (DRY) SIZE: MOTOR: C2-3240-FA-198 C.O. SURGE BIN DUST COLLECTOR FAN 3240-AP-1285-C1A-2"-N VENDOR VENDOR ES DUCTING DUCTING CONVEYOR CONVEYOR FEEDER AFD DRIVE 3240 32181 H TE BRG FRONT 3240 32181 G TE BRG REAR 3240 32181 HS 3240 32181 XA FAULT 3240 32181 II VENDOR A TO ? J/SP 3240 02121 XA + 3240 32181 H TI BRG FRONT H, P2 HH, P1 3240 32181 G TI BRG REAR H, P2 HH, P1 DUST DUST COLLECTOR, C2-3240-DC-044 3995 3200-25J-020 DUST DUST COLLECTOR, C2-3240-DC-043 3996 3200-25J-020 ES A-D 3240 02123 PDAH 3240 02122 PDAH
  • 30.
    M T1 TEAR LHS 3240 02218 VE 3240 02202 HSS RHS 3240 02202 HSA RHS A,B 3240 02218 VT A-D 3240 02207 A TI 3240 02206 A TE RHS 3240 02219 LAH P1 3240 02215A LAH P1 3240 02215 B LSH 3240 02203 A ST 3240 02281 II 3240 02205 ZAHH LHS, P1 3240 02215 B LE 3240 02206 B TI HH, P1 H, P2 3240 02204 ZS 3240 02210 SE 3240 02282 HS 3240 02205 ZSHH RHS 3240 02216 LE 3240 02201 HSA 3240 02219 LSH 3240 02206 A TI HH, P1 H, P2 3240 02215 A LE 3240 02208 B XA 3240 02204 ZS 3240 02216 LT 3240 02206 B TE 3240 02203 A SE 3240 02216 LI 3240 02208 XA P1 3240 02204 ZAHH 3240 02205 ZSH 3240 02201 HSS 3240 02217 LAL 3240 02282 XA 3240 02282 II 3240 02203 B SE 3240 02210 WIT 3240 02216 A LI 3240 02281 HS 3240 02203 A SI 3240 02217 LSL 3240 02208 A XS 3240 02203 B SI 3240 02281 XA 3240 02203 B ST 3240 02215 B LAH 3240 02210 WE LHS 3240 02218 VI A-D 3240 02203 SDI 3240 02207 B TI HH, P1 H, P2 3240 02207 B TE 3240 02210 WI 3240 02207 A TE HH, P1 H, P2 3240 02215 A LSH DUST COARSE SCREEN DUST COLLECTOR NO. 5, 2101 3200-25J-020 COARSE SCREEN O/S COARSE SCREEN O/S CONVEYOR NO. 2, 1945 3200-25J-024 COARSE SCREEN U/S TERTIARY CRUSHER SURGE BIN FEED CONVEYOR NO. 2, 1912 3200-25J-026 SEC. CRUSHER PRODUCT SEC. CRUSHER DISCHARGE CONV. NO. 2, C2-3220-CV-026 3244 3200-25J-021 PLANT AIR 2035 3200-25J-017 LHS A,B RHS LHS HH, P1 H, P2 P1 H, P1 P1 DUCTING C2-3240-DC-042 LHS A,B H, P2 L, P2 ST/SP FAULT EXPERT SYSTEM A,B A,B BIN CONTINUED ON P&ID 3200-25J-021 A,B C2-3240-CV-025 P1 A,B A,B C2-3240-CV-041 RHS, P1 A,B FAULT P1 J/SP SIZE:650t LIVE C2-3240-BN-018 C.O. SURGE BIN NO. 8 C2-3240-FA-199 SIZE: MOTOR: C2-3240-SC-024 C.O. SCREEN NO. 8 SIZE: MOTOR: C2-3240-FE-029 C.O. SCREEN FEEDER NO. 8 SIZE: C2-3240-ST-118 COARSE SCREEN NO.8 O/S CHUTE SIZE: C2-3240-SL-034 C.O. SCREEN FEEDER NO.8 VOLUMETRIC BELT SCALE 3220-AP-1048-C1A-2"-N C2-3240-ST-118 SIZE: MOTOR: C2-3240-FA-199 C.O. SURGE BIN DUST COLLECTOR NO.1 FAN C2-3240-ST-084 C2-3240-DC-199 C2-3240-FE-029 SIZE: C2-3240-DC-199 C.O. SURGE BIN DUST COLLECTOR NO.1 C2-3240-BN-018 C2-3240-ST-094 AG KM LT ISSUED FOR CLIENT REVIEW 23-Dec-11 B RP ISSUED FOR COMBINED REVIEW 23-Jun-11 A 12/23/2011 K.MUNDY A. GUNSON T. OH L. TAMELIN 1/3/2012 11:25:03 AM WBS: 3240 B PIPING AND INSTRUMENTATION DIAGRAM SCREENING BUILDING 3200-25J-022 COARSE ORE FEEDER AND SCREEN NO. 8 SIZE: C2-3240-ST-084 C.O. SURGE BIN NO.8 FEEDER SKIRT C2-3240-ST-114 SIZE: C2-3240-ST-094 C.O. SCREEN NO.8 FEED CHUTE C2-3240-SC-024 SIZE: C2-3240-ST-114 C.O. SCREEN NO.8 U/S CHUTE C2-3240-SL-034 TO ATMOSPHERE V V V V ES V ES V V ES V V ES ES D 4 F B A 3 2 1 5 6 8 E 7 C REV. APPROVED CHK. DES. REV. DATE REVISION DESCRIPTION CLIENT LEAD ENGINEER SCALE DRAWING NUMBER CHECK DESIGN CHECK DRAWING DESIGNED BY DRAWN BY APPROVAL DATE APPROVAL DATE APPROVED CHK. DES. REV. DATE REVISION DESCRIPTION REFERENCE DRAWING No. 1:100 0 1:200 5m 10m 0 5m 10m 15m 20m 1:500 10m 0 20m 30m 40m 50m 1:1000 0 100m 50m 1:20 0 0.5m 1m 1.5m 2m 0 1:25 0.5m 1m 1.5m 1:33 1/3 2.5m 2m 0 1m 2m 3m 0 1:50 1m 2m 3m 4m 5m CAD FILE NAME: P:0CAD000SPEM** MODEL UPDATED: DWG. FILE UPDATED: MANUAL CHANGES MADE: YES NO YES NO YES NO PROJECT MANAGER ENGINEERING MANAGER AREA PROJECTENGINEER REFERENCE DRAWINGS SAFETY SHARE: APPROVAL DATE CONTRACT NO. SAFETY SHARE : BA6CVA1.IGR NOTICE: THIS DRAWING HAS NOT BEEN PUBLISHED AND IS THE SOLE PROPERTY OF FLUOR AND IS LENT TO THE BORROWER FOR THEIR CONFIDENTIAL USE ONLY, AND IN CONSIDERATION OF THE LOAN OF THIS DRAWING, THE BORROWER PROMISES AND AGREES TO RETURN IT UPON REQUEST AND AGREES THAT IT WILL NOT BE REPRODUCED, COPIED LENT OR OTHERWISE DISPOSED OF DIRECTLY OR INDIRECTLY, NOR USED FOR ANY OTHER PURPOSE OTHER THAN WHICH IT IS FURNISHED. NONE Apr 2011 240K-C2- V V V V RHS LHS ES V V V V V V 3240 02205 ZAH 3240 02204 ZAH P2 P2 V V M 3240 02283 II 3240 02283 HS 3240 02283 XA ST/SP FAULT C2-3240-FA-200 C2-3240-DC-200 TO ATMOSPHERE SIZE: C2-3240-DC-200 C.O. SURGE BIN DUST COLLECTOR NO.2 SIZE: MOTOR: C2-3240-FA-200 C.O. SURGE BIN DUST COLLECTOR NO.2 FAN 3240-AP-1286-C1A-2"-N VENDOR VENDOR ES FEEDER AFD DRIVE 3240 32281 H TE BRG FRONT 3240 32281 G TE BRG REAR 3240 32281 HS 3240 32281 XA FAULT 3240 32281 II VENDOR A TO ? J/SP 3240 02221 XA + 3240 32281 H TI BRG FRONT H, P2 HH, P1 3240 32281 G TI BRG REAR H, P2 HH, P1 DUCTING DUCTING CONVEYOR CONVEYOR ES DUST DUST COLLECTOR, C2-3240-DC-043 3997 3200-25J-020 DUST DUST COLLECTOR, C2-3240-DC-044 3998 3200-25J-020 A-D 3240 02222 PDAH 3240 02223 PDAH
  • 31.
    T5 B GEAR REDUCER A,B D, E J-M A-L A-L A-L A-L A F L G J D T8 T1 3240 02305 ZSH 3240 02304 ZSH 3240 02305 ZAHH 3240 02304 ZAHHP1 3240 02331 VI 3240 02332 LE 3240 02332 LSL 3240 02333 TE 3240 02332 LA 3240 02333 TI 3240 02322 ZSHH 3240 02331 VT 3240 02331 VE 3240 HS 3240 H TI BRG FRONT H, P2 HH, P1 3240 G TI 3240 H TE 3240 G TE 3240 XA FAULT 3240 II 3240 02310 SE 3240 02322 A ZAH P1 P1 3240 02322 ZSH 3240 02384 XA 3240 02312 D ZS 3240 02315 A LAH P1 3240 02382 XA 3240 02304 ZAH P2 D, E LHS 3240 02321 SAL P1 3240 02381 XA 3240 02304 ZAHH 3240 02305 ZAHH 3240 02315 A LE 3240 02310 WI L, P2 3240 02313 XE B 3240 02313 XE A 3240 02313 XIH H, P2 3240 02313 B XY 3240 02313 A XY 3240 02312 C ZS 3240 02308 XA 3240 02301 HSA P1 3240 02384 II 3240 02321 SE 3240 02301 HSA LHS J-M 3240 02316 LIT 3240 02312 C ZA 3240 02302 HSS RHS 3240 02381 II 3240 02303 B ST 3240 02303 SDI 3240 02310 WIT 3240 02306 TI 3240 02305 ZSH RHS 3240 02303 A ST 3240 02304 ZSHH 3240 02301 HSS 3240 02316 LI 3240 02306 TE 3240 02302 HSS RHS 3240 02316 LE 3240 02315 A LSH 3240 02304 ZAH 3240 02315 B LE 3240 02303 A SE 3240 02322 B ZAHH 3240 02382 II 3240 02315 B LAH P1 3240 02303 B SE 3240 02312 B ZS 3240 02312 A ZS 3240 02312 A ZA 3240 02312 B ZA 3240 02323 NA 3240 02323 NS 3240 02308 B XS 3240 02305 ZAH RHS A-C 3240 02302 HSA P1 J-M RHS 3240 02308 A XS 3240 02305 ZAH 3240 02310 WE 3240 02303 A SI 3240 02301 HSS LHS 3240 02307 TE 3240 02384 HS 3240 02321 SSL 3240 02382 HS 3240 02302 HSA 3240 02312 D ZA OVER TRAVEL 3240 02303 B SI 3240 02305 ZSHH 3240 02305 ZSHH 3240 02381 HS J/SP 3240 02315 B LSH 3240 02304 ZSH LHS 3240 02304 ZSHH D, E LHS RHS 3240 02307 TI LHS C.O. SCREEN O/S C.O. SCREEN O/S, C2-3240-SC-011 1365 3200-25J-011 C.O. SCREEN O/S C.O. SCREEN O/S, C2-3240-SC-012 1807 3200-25J-012 C.O. SCREEN AREA SUMP COARSE SCREENING EFFLUENT PUMPBOX NO 1 3296 3200-25J-019 C. O.SCREEN O/S C.O. SCREEN O/S, C2-3240-SC-014 1809 3200-25J-014 C.O. SCREEN O/S C.O. SCREEN O/S, C2-3240-SC-013 1808 3200-25J-013 C.O. SCREEN O/S SECONDARY CRUSHER SURGE BIN NO.1 1810 3200-25J-027 OVER TRAVEL H, P2 HH,P1 L, P2 H, P2 HH,P1 A-B A-B A-B FAULT J/SP FAULT FAULT C2-3220-BN-021 C2-3220-BN-021 J/SP BRG REAR H, P2 HH, P1 AFD SAFETY INTERLOCKS BRG REAR A TO ? BRG FRONT LHS P1 P1 P1 H, P1 A-C LHS A TO N P1 P1 A-C LHS RHS LHS A-H P2 D,E RHS P2 J-M H P2 HYDRAULIC RAIL CLAMP A-H NOTES: 1. IN INSTRUMENT NUMBERING SUFFIXES, LETTER "I" AND "O" ARE NOT USED. A-B J/SP P2 P1 RHS P1 C2-3240-BX-023 END TRAVEL P2 VENDOR P1 NOTE 1 NOTE 1 C NOTE 1 K RHS SENOR GUARD E NOTE 1 END TRAVEL LL, P1 H, P2 L, P2 P2 A-H A-C P2 P1 P1 A-H RHS LHS TEAR C2-3240-PP-021 T4 C2-3240-SL-005 C2-3240-MA-005 C2-3240-DV-011 V V V V AG KM LT ISSUED FOR CLIENT REVIEW 23-Dec-11 B RP ISSUED FOR COMBINED REVIEW 23-Jun-11 A 12/23/2011 K.MUNDY A. GUNSON T. OH L. TAMELIN 1/3/2012 1:23:38 PM WBS: 3240 B PIPING AND INSTRUMENTATION DIAGRAM SCREENING BUILDING 3200-25J-023 COARSE SCREENING O/S CONVEYOR NO. 1 C2-3240-ST-050 C2-3240-ZM-215 ES V C2-3240-MD-013 SIZE: C2-3240-ST-050 CV-015 HEAD CHUTE C2-3240-CV-015 C2-3240-ST-059 C2-3240-BN-005 3240 02311 XA + V V V ES ES V V V SIZE: C2-3240-MA-005 CV-015 SELF CLEANING MAGNET V SIZE: 1829 mm X 475 m L MATERIAL: MOTOR: 746.00 kW C2-3240-CV-015 COARSE SCREEN O/S CONVEYOR NO. 1 SIZE: MATERIAL: CAPACITY: TRIM: C2-3240-BN-005 CV-015 TRAMP METAL BIN 3240-SL-1007-C1B-6"-N SIZE: C2-3240-ST-059 CV-015 TRAMP METAL CHUTE ES ES SIZE: MATERIAL: MOTOR: C2-3240-PP-021 COARSE SCREEN AREA SUMP PUMP NO.1 V V V SIZE: C2-3240-SL-005 CV-015-2-IDLER BELT SCALE V ES V V SIZE: C2-3240-MD-013 CV-015 METAL DETECTOR ES C2-3240-ZE-006 ES 3240 XA + C2-3240-ZE-006 SENOR GUARD BELT RIP DETECTOR V C2-3240-DV-011 CV-015 SHUTTLE HEAD C2-3240-ZM-215 HYDRAULIC RAIL CLAMP D 4 F B A 3 2 1 5 6 8 E 7 C REV. APPROVED CHK. DES. REV. DATE REVISION DESCRIPTION CLIENT LEAD ENGINEER SCALE DRAWING NUMBER CHECK DESIGN CHECK DRAWING DESIGNED BY DRAWN BY APPROVAL DATE APPROVAL DATE APPROVED CHK. DES. REV. DATE REVISION DESCRIPTION REFERENCE DRAWING No. 1:100 0 1:200 5m 10m 0 5m 10m 15m 20m 1:500 10m 0 20m 30m 40m 50m 1:1000 0 100m 50m 1:20 0 0.5m 1m 1.5m 2m 0 1:25 0.5m 1m 1.5m 1:33 1/3 2.5m 2m 0 1m 2m 3m 0 1:50 1m 2m 3m 4m 5m CAD FILE NAME: P:0CAD000SPEM** MODEL UPDATED: DWG. FILE UPDATED: MANUAL CHANGES MADE: YES NO YES NO YES NO PROJECT MANAGER ENGINEERING MANAGER AREA PROJECTENGINEER REFERENCE DRAWINGS SAFETY SHARE: APPROVAL DATE CONTRACT NO. SAFETY SHARE : BA6CVA1.IGR NOTICE: THIS DRAWING HAS NOT BEEN PUBLISHED AND IS THE SOLE PROPERTY OF FLUOR AND IS LENT TO THE BORROWER FOR THEIR CONFIDENTIAL USE ONLY, AND IN CONSIDERATION OF THE LOAN OF THIS DRAWING, THE BORROWER PROMISES AND AGREES TO RETURN IT UPON REQUEST AND AGREES THAT IT WILL NOT BE REPRODUCED, COPIED LENT OR OTHERWISE DISPOSED OF DIRECTLY OR INDIRECTLY, NOR USED FOR ANY OTHER PURPOSE OTHER THAN WHICH IT IS FURNISHED. NONE Apr 2011 240K-C2-
  • 32.
    T1 T5 J-M A-B D, E T8 3240 02404 ZSHH 3240 02410 SE 3240 02413 XE A 3240 02408 A XS 3240 02415B LAH P1 3240 02412 A ZS 3240 02413 XE B 3240 02403 A SI 3240 02402 HSA P1 J-M RHS 3240 02406 TE 3240 02422 ZAHH 3240 02421 SAL P1 3240 02422 ZSH 3240 02401 HSS LHS 3240 02401 HSS 3240 02404 ZSHH LHS RHS D, E 3240 02405 ZSH RHS 3240 02482 HS 3240 02423 NA 3240 02412 D ZA OVER TRAVEL 3240 02405 ZSHH 3240 02423 NS 3240 02403 A SE 3240 02413 XIH H, P2 3240 02401 HSA LHS J-M 3240 02405 ZAH RHS A-C 3240 02305 ZAH 3240 02422 ZAH P1 P1 3240 02416 LE 3240 02413 B XY 3240 02484 II 3240 02413 A XY 3240 02407 TE 3240 02402 HSS RHS 3240 02412 B ZS 3240 02421 SE 3240 02402 HSS RHS 3240 02415 B LE 3240 02408 XA 3240 02407 TI LHS 3240 02405 ZSHH 3240 02412 B ZA 3240 02401 HSA P1 3240 02412 D ZS 3240 02416 LIT 3240 02410 WE 3240 02415 A LAH P1 3240 02404 ZAHH 3240 02415 A LSH 3240 02410 WIT 3240 02484 XA 3240 02402 HSA 3240 02305 ZAHH 3240 02406 TI 3240 02405 ZAHH 3240 02415 A LE 3240 02304 ZAHH P1 3240 02403 A ST 3240 02482 XA 3240 02416 LI 3240 02404 ZSH LHS 3240 02304 ZAH P2 D, E LHS 3240 02408 B XS 3240 02412 A ZA 3240 02410 WI L, P2 3240 02404 ZSH 3240 02482 II 3240 02484 HS 3240 02412 C ZS 3240 02404 ZAH 3240 02412 C ZA 3240 02403 SDI 3240 02421 SSL 3240 02405 ZSH 3240 02415 B LSH A-B C.O.SCREEN O/S C.O.SCREEN O/S, C2-3240-SC-023 1944 3200-25J-021 C.O.SCREEN O/S SECONDARY CRUSHER SURGE BIN 1941 3200-25J-033 C.O.SCREEN O/S C.O.SCREEN O/S, C2-3240-SC-022 1943 3200-25J-016 C.O.SCREEN AREA SUMP COARSE SCREENING PUMPBOX NO 1 3297 3200-25J-019 C.O.SCREEN O/S C.O.SCREEN O/S, C2-3240-SC-024 1945 3200-25J-022 C.O.SCREEN O/S C.O.SCREEN O/S, C2-3240-SC-021 1942 3200-25J-015 P1 J-M P2 D,E RHS HYDRAULIC RAIL CLAMP RHS LHS J/SP P2 OVER TRAVEL LL, P1 H, P2 L, P2 LHS P1 P2 P1 P1 A-H A-C P2 RHS P1 LHS A-H RHS P1 P1 A-C RHS LHS END TRAVEL SENSOR GUARD P2 P1 P1 P1 TEAR P2 C2-3240-BX-023 FAULT LHS A-H A-H A-C H, P1 END TRAVEL J/SP FAULT C2-3220-BN-025 P2 C2-3240-SL-007 3240-SL-1008-C1B-6"-N SIZE: MATERIAL: CAPACITY: TRIM: C2-3240-BN-006 CV-025 TRAMP METAL BIN V V V ES SIZE: C2-3240-ST-089 CV-025 TRAMP METAL CHUTE V ES C2-3240-BN-006 V SIZE: C2-3240-SL-007 CV-025- BELT SCALE ES AG KM LT ISSUED FOR CLIENT REVIEW 23-Dec-11 B RP ISSUED FOR COMBINED REVIEW 23-Jun-11 A 12/23/2011 K.MUNDY A. GUNSON T. OH L. TAMELIN 1/3/2012 11:30:49 AM WBS: 3240 B PIPING AND INSTRUMENTATION DIAGRAM SCREENING BUILDING 3200-25J-024 COARSE SCREENING O/S CONVEYOR NO. 2 V V SIZE: C2-3240-ST-080 CV-025 HEAD CHUTE V V C2-3240-ZM-225 C2-3240-ST-080 V SIZE: MATERIAL: MOTOR: C2-3240-PP-022 COARSE SCREEN AREA SUMP PUMP EAST C2-3240-MA-007 SIZE: 1829 mm X 475 m L MATERIAL: MOTOR: 746.00 kW C2-3240-CV-025 COARSE SCREEN O/S CONVEYOR NO. 2 V SIZE: C2-3240-MA-007 CV-025 SELF CLEANING MAGNET V SIZE: C2-3240-MD-014 CV-025 METAL DETECTOR C2-3240-MD-014 V C2-3240-ST-089 C2-3240-PP-022 ES C2-3240-DV-025 D 4 F B A 3 2 1 5 6 8 E 7 C REV. APPROVED CHK. DES. REV. DATE REVISION DESCRIPTION CLIENT LEAD ENGINEER SCALE DRAWING NUMBER CHECK DESIGN CHECK DRAWING DESIGNED BY DRAWN BY APPROVAL DATE APPROVAL DATE APPROVED CHK. DES. REV. DATE REVISION DESCRIPTION REFERENCE DRAWING No. 1:100 0 1:200 5m 10m 0 5m 10m 15m 20m 1:500 10m 0 20m 30m 40m 50m 1:1000 0 100m 50m 1:20 0 0.5m 1m 1.5m 2m 0 1:25 0.5m 1m 1.5m 1:33 1/3 2.5m 2m 0 1m 2m 3m 0 1:50 1m 2m 3m 4m 5m CAD FILE NAME: P:0CAD000SPEM** MODEL UPDATED: DWG. FILE UPDATED: MANUAL CHANGES MADE: YES NO YES NO YES NO PROJECT MANAGER ENGINEERING MANAGER AREA PROJECTENGINEER REFERENCE DRAWINGS SAFETY SHARE: APPROVAL DATE CONTRACT NO. SAFETY SHARE : BA6CVA1.IGR NOTICE: THIS DRAWING HAS NOT BEEN PUBLISHED AND IS THE SOLE PROPERTY OF FLUOR AND IS LENT TO THE BORROWER FOR THEIR CONFIDENTIAL USE ONLY, AND IN CONSIDERATION OF THE LOAN OF THIS DRAWING, THE BORROWER PROMISES AND AGREES TO RETURN IT UPON REQUEST AND AGREES THAT IT WILL NOT BE REPRODUCED, COPIED LENT OR OTHERWISE DISPOSED OF DIRECTLY OR INDIRECTLY, NOR USED FOR ANY OTHER PURPOSE OTHER THAN WHICH IT IS FURNISHED. NONE Apr 2011 240K-C2- L, P2 GEAR REDUCER 3240 02431 VI 3240 02432 LE 3240 02432 LSL 3240 02433 TE 3240 02432 LA 3240 02433 TI 3240 02431 VT 3240 02431 VE 3240 02403 B ST 3240 02403 B SE 3240 02403 B SI H, P2 HH,P1 H, P2 HH,P1 V V V ES ES V V 3240 02481 II 3240 02481 HS J/SP 3240 02481 XA 3240 02411 XA + A TO N FAULT ES C2-3240-CV-025 C2-3240-ZM-007 VENDOR BRG REAR 3240 II 3240 XA 3240 XA + A TO ? SAFETY INTERLOCKS FAULT 3240 G TE 3240 H TE 3240 G TI 3240 H TI AFD BRG FRONT H, P2 HH, P1 BRG REAR H, P2 HH, P1 3240 HS J/SP BRG FRONT C2-3240-ZM-225 HYDRAULIC RAIL CLAMP C2-3240-DV-025 CV-025 SHUTTLE HEAD C2-3240-ZM-007 SENSOR GUARD BELT RIP DETECTOR 3240 02422 ZSHH V A-B A-B A-B ES NOTE 1 A-L A-L A-L A-L NOTE 1 NOTE 1 B E D C F G J H L K A NOTE 1 NOTES: 1. IN INSTRUMENT NUMBERING SUFFIXES, LETTER "I" AND "O" ARE NOT USED.
  • 33.
    GEAR REDUCER GEAR REDUCER GEAR REDUCER K F G T1 T5 3240 02531 LA 3240 02531 LSL 3240 02531 LE M 3240 02518 FIT 3240 02518 FIC 3240 02542 LE 3240 02542 LSL 3240 02543 TI 3240 02541 VI 3240 02543 TE 3240 02541 VT 3240 02541 VE 3240 02542 LA 3240 02551 VI 3240 02551 VT 3240 02551 VE 3240 XA 3240 II 3240 HS 3240 02553 TI 3240 02553 TE 3240 02533 TI 3240 02533 TE 3240 H TI BRG FRONT H, P2 HH, P1 3240 02552 LE 3240 02552 LSL 3240 02552 LA 3240 H TE 3240 G TE 3240 G TI 3240 02552 LA 3240 02552 LSL 3240 02552 LE 3240 02513B XE 3240 02513 A XY 3240 02513 XIH 3240 02523 NS 3240 02523 NA 3240 02505 ZAHH 3240 02504 ZAHH 3240 02513 B XY 3240 02513 A XE 3240 02584 II 3240 02584 HS J/SP 3240 02580 XA 3240 02510 WIT 3240 02582 XA 3240 02508 XA 3230 02502 HSA P1 J-M RHS 3240 02504 ZAHH 3240 02507 TI RHS LHS 3240 02580 XA 3240 02505 ZAHH 3240 02515 A LAH P1 3240 02580 HS J/SP 3240 02580 II 3240 02510 WE 3240 02521 SE 3240 02512 A ZS 3240 02503 B SI 3240 02510 WI L, P2 3240 02512 A ZA P1 3240 02515 B LE 3240 02502 HSA 3230 02508 B XS 3240 02522 ZS 3240 02510 SE 3240 02504 ZSH LHS 3240 02505 ZSH RHS 3240 02504 ZA 3240 02512 C ZS 3240 02501 HSS LHS 3240 02505 ZSHH 3240 02503 SDI 3240 02503 A ST 3240 02503 A SI 3240 02512 B ZS 3240 02504 ZSHH 3240 02501 HSA P1 3240 02506 TE 3240 02515 A LSH 3240 02582 HS J/SP 3240 02581 HS J/SP 3240 02515 A LE 3240 02404 ZSH 3240 02503 B SE 3240 02515 B LAH P1 3240 02505 ZSH 3240 02515 B LSH 3240 02512 D ZS 3240 02508 A XS 3240 02505 ZSHH 3240 02582 II 3240 02501 HSS 3240 02505 ZA A-C RHS 3240 02507 TE 3240 02503 B ST 3240 02581 II 3240 02512 B ZA P2 3240 02521 SS 3240 02505 ZAH 3240 02502 HSS RHS 3240 02504 ZAH 3240 02503 A SE 3240 02512 D ZA 3240 02581 XA FAULT 3240 02522 ZAHH A-B 3230 02501 HSA LHS J-M 3240 02502 HSS RHS 3240 02512 C ZA 3240 02521 SA P1 3240 02504 ZSHH 3240 02522 ZSHH 3240 02522 ZAH P1 P2 A-B 3240 02506 TI WRIM FRESH WATER 3442 5100-25J-014 C.O. SCREEN U/S C.O. SCREEN NO. 2, C2-3240-SC-012 1812 3200-25J-012 C.O. SCREEN U/S C.O. SCREEN NO. 3, C2-3240-SC-013 1813 3200-25J-013 C.O. SCREEN U/S C.O. SCREEN NO. 4, C2-3240-SC-014 1814 3200-25J-014 DUST COARSE SCREEN DUST COLLECTOR NO. 4, 3434 3200-25J-020 DUST COARSE SCREEN DUST COLLECTOR NO. 3, 3435 3200-25J-020 DUST COARSE SCREEN DUST COLLECTOR NO. 2, 3436 3200-25J-020 DUST COARSE SCREEN DUST COLLECTOR NO. 1, 3437 3200-25J-020 C.O. SCREEN U/S C.O. SCREEN NO. 1, C2-3240-SC-011 1364 3200-25J-011 BALL MILL SCREEN O/S BALL MILL SCREEN O/S CONVEYOR NO. 1, 1307 3300-25J-020 BELT WASH COOLING WATER RETURN PUMPBOX, C2-3230-BX-030 3252 3200-25J-079 HPGR FEED HPGR FEED SURGE BIN NO. 1, C2-3230-BN-031 1816 3200-25J-048 H, P2 HH,P1 L, P2 H, P2 HH,P1 L, P2 H, P2 HH,P1 L, P2 FAULT A TO ? BRG REAR BRG FRONT J/SP H, P2 HH,P1 H, P2 HH,P1 BRG REAR H, P2 HH, P1 AFD H, P2 HH,P1 SAFETY INTERLOCKS H J E D C C2-3240-DC-234 C2-3240-DC-233 C2-3240-DC-232 C2-3240-DC-231 C2-3310-CV-019 P1 P1 LHS RHS P2 FAULT WRIM WRIM A TO N A-H RHS TEAR H, P1 HH, P1 H, P2 J-M A-C P2 LHS OVER TRAVEL HYDRAULIC RAIL CLAMP FAULT A,B LHS RHS END TRAVEL LHS D,E P1 HH, P1 H, P2 P1 P2 END TRAVEL VENDOR D, E NOTE 1 NOTES: 1. IN INSTRUMENT NUMBERING SOFFIXES, LETTER "I" AND "O" ARE NOT USED. A-K A-H A-K NOTE 1 A-K A-K HH, P1 H, P2 LHS B NOTE 1 A RHS D,E A-C HH, P1 H, P2 FAULT LHS A-H P2 P1 A-H LHS D,E RHS OVER TRAVEL P1 P2 P2 J-M SENSOR GUARD A-C A-B A-B C2-3240-BN-019 3240 02511 XA + C2-3240-DV-041 CV-031 SHUTTLE HEAD ES 3240-WF-1236-C1A-2"-N ES ES C2-3240-SL-006 V V SIZE: C2-3240-MD-015 CV-031 METAL DETECTOR ES C2-3240-MD-015 V V V C2-3240-ST-085 AG KM LT ISSUED FOR CLIENT REVIEW 23-Dec-11 B RP ISSUED FOR COMBINED REVIEW 23-Jun-11 A 12/23/2011 K.MUNDY A. GUNSON T. OH L. TAMELIN 1/3/2012 1:24:24 PM WBS: 3240 B PIPING AND INSTRUMENTATION DIAGRAM SCREENING BUILDING 3200-25J-025 TERTIARY CRUSHER SURGE BIN CONV. NO. 1 T4 C2-3240-CV-031 T4 C2-3240-ST-087 C2-3240-ZM-231 C2-3240-MA-013 T4 SIZE: C2-3240-ST-087 CV-031 CONVEYOR HEAD CHUTE 3240 XA + C2-3240-ZE-018 C2-3240-ZE-018 CV-031 SENSOR GUARD BELT RIP DETECTOR ES V 3240-WF-1234-C1A-2"-N 3240-WF- -C1A-3"-N V SIZE: C2-3240-MA-013 CV-031 SELF CLEANING MAGNET ES V V ES SIZE: C2-3240-SL-006 CV-031 BELT SCALE ES V SIZE: C2-3240-ST-085 CV-031 TRAMP METAL CHUTE V V V SIZE: 2438 mm X 460 m L MATERIAL: MOTOR: 2238.00 kW C2-3240-CV-031 TERTIARY CRUSHER SURGE BIN FEED CONVEYOR NO. 1 V SIZE: MATERIAL: CAPACITY: TRIM: C2-3240-BN-019 CV-031 TRAMP METAL BIN V V V V V C2-3240-ZM-231 HYDRAULIC RAIL CLAMP V V V 3240 02518 FV + V V V ES V V V V 3"x2" 3240 02518 FE + C2-3240-ZM-019 SIZE: C2-3240-ZM-019 CV-031 BELT CLEANER STATION D 4 F B A 3 2 1 5 6 8 E 7 C REV. APPROVED CHK. DES. REV. DATE REVISION DESCRIPTION CLIENT LEAD ENGINEER SCALE DRAWING NUMBER CHECK DESIGN CHECK DRAWING DESIGNED BY DRAWN BY APPROVAL DATE APPROVAL DATE APPROVED CHK. DES. REV. DATE REVISION DESCRIPTION REFERENCE DRAWING No. 1:100 0 1:200 5m 10m 0 5m 10m 15m 20m 1:500 10m 0 20m 30m 40m 50m 1:1000 0 100m 50m 1:20 0 0.5m 1m 1.5m 2m 0 1:25 0.5m 1m 1.5m 1:33 1/3 2.5m 2m 0 1m 2m 3m 0 1:50 1m 2m 3m 4m 5m CAD FILE NAME: P:0CAD000SPEM** MODEL UPDATED: DWG. FILE UPDATED: MANUAL CHANGES MADE: YES NO YES NO YES NO PROJECT MANAGER ENGINEERING MANAGER AREA PROJECTENGINEER REFERENCE DRAWINGS SAFETY SHARE: APPROVAL DATE CONTRACT NO. SAFETY SHARE : BA6CVA1.IGR NOTICE: THIS DRAWING HAS NOT BEEN PUBLISHED AND IS THE SOLE PROPERTY OF FLUOR AND IS LENT TO THE BORROWER FOR THEIR CONFIDENTIAL USE ONLY, AND IN CONSIDERATION OF THE LOAN OF THIS DRAWING, THE BORROWER PROMISES AND AGREES TO RETURN IT UPON REQUEST AND AGREES THAT IT WILL NOT BE REPRODUCED, COPIED LENT OR OTHERWISE DISPOSED OF DIRECTLY OR INDIRECTLY, NOR USED FOR ANY OTHER PURPOSE OTHER THAN WHICH IT IS FURNISHED. NONE Apr 2011 240K-C2-
  • 34.
    T5 GEAR REDUCER GEAR REDUCER GEAR REDUCER G F K T1 3240 02613 B XY 3240 02604 ZAH 3240 02604 ZSH LHS 3240 02583 HS 3240 02583 H TI BRG FRONT H,P2 HH, P1 3240 02601 HSA LHS J-M 3240 02621 SS 3240 02613 A XE 3240 02602 HSA P1 J-M RHS 3240 02605 ZAHH 3240 02612 C ZA 3240 02613 A XY 3240 02603 A SE 3240 02605 ZSH RHS 3240 02613 B XE 3240 02684 II 3240 02684 HS J/SP 3240 02684 XA 3240 02642 LE 3240 02642 LSL 3240 02652 LA 3240 02631 VI 3240 02652 LSL 3240 02631 VT 3240 02680 II 3240 02651 VE 3240 02680 HS J/SP 3240 02651 VI 3240 02680 XA 3240 02651 VT 3240 02681 HS J/SP 3240 02642 LA 3240 02653 TI 3240 02653 TE 3240 02622 ZSHH 3240 02652 LE 3240 02681 II 3240 02631 VE 3240 02681 XA FAULT 3240 02643 TI 3240 02633 TI 3240 02632 LA 3240 02641 VI 3240 02503 B SI 3240 02633 TE 3240 02643 TE 3240 02503 B SE 3240 02632 LSL 3240 02503 B ST 3240 02641 VT 3240 02632 LE 3240 02641 VE 3240 02612 D ZS 3240 02621 SE 3240 02607 TE 3240 02601 HSS LHS 3240 02621 SA P1 3240 02606 TE 3240 02615 B LAH P1 3240 02608 A XS 3240 02615 B LSH 3240 02602 HSS RHS 3240 02603 A ST 3240 02615 B LE 3240 02604 ZAHH 3240 02604 ZAH 3240 02605 ZSHH 3240 02605 ZAHH 3240 02622 ZAH P1 P2 3240 02605 ZAH 3240 02610 SE 3240 02603 A SI 3240 02612 A ZA P1 3240 02615 A LAH P1 3240 02605 ZSH 3240 02604 ZSHH 3240 02610 WI L, P2 3240 02615 A LSH 3240 02604 ZSH 3240 02622 ZS 3240 02605 ZAH A-C RHS 3240 02610 WIT 3240 02615 A LE 3240 02682 XA 3240 02603 NA 3240 02622 ZAHH 3240 02610 WE 3240 02603 NS 3240 02601 HSA P1 3240 02601 HSS 3240 02602 HSS RHS 3240 02682 HS J/SP 3240 02605 ZSHH 3240 02612 B ZA P2 3240 02682 II 3240 02612 D ZA 3240 02607 TI LHS RHS 3240 02583 G TI 3240 02583 H TE 3240 02583 G TE 3240 02618 FIT M 3240 02583 XA 3240 02583 II 3240 02612 B ZS 3240 02602 HSA 3240 02612 A ZS 3240 02604 ZSHH 3240 02608 XA 3240 02618 FIC 3240 02603 SDI 3240 02612 C ZS 3240 02606 TI 3240 02604 ZAHH 3240 02608 B XS 3240 02613 XIH WRIM FRESH WATER 3456 5100-25J-014 C.O. SCREEN U/S C.O. SCREEN NO. 7, C2-3240-SC-023 1910 3200-25J-021 DUST COARSE SCREENING DUST COLLECTOR NO.8, 3438 3200-25J-020 DUST COARSE SCREENING DUST COLLECTOR NO.7, 3439 3200-25J-020 DUST COARSE SCREENING DUST COLLECTOR NO.6, 3440 3200-25J-020 DUST COARSE SCREENING DUST COLLECTOR NO.5, 3441 3200-25J-020 C.O. SCREEN U/S C.O. SCREEN NO. 5, C2-3240-SC-021 1905 3200-25J-015 C.O. SCREEN U/S C.O. SCREEN NO. 8, C2-3240-SC-024 1912 3200-25J-022 BALL MILL SCREEN O/S BALL MILL SCREEN O/S CONVEYOR NO. 2, 1460 3300-25J-021 BELT WASH COOLING WATER RETURN PUMPBOX, C2-3230-BX-030 3249 3200-25J-079 HPGR FEED HPGR FEED SURGE BIN NO. 5, C2-3230-BN-035 1904 3200-25J-056 C.O. SCREEN U/S C.O. SCREEN NO. 6, C2-3240-SC-022 1906 3200-25J-016 J-M BRG REAR H, P2 HH, P1 LHS P2 FAULT END TRAVEL A-C P2 P1 H, P2 HH,P1 L, P2 H, P2 HH,P1 H, P2 HH,P1 A TO ? L, P2 FAULT L, P2 A-B A-B A-B SENSOR GUARD H, P2 HH,P1 FAULT H, P2 HH,P1 H, P2 HH,P1 C2-3310-CV-029 LHS A-H OVER TRAVEL P2 D,E P1 P2 D, E LHS WRIM RHS A-C P2 HH, P1 H, P2 HH, P1 H, P2 A-C WRIM HYDRAULIC RAIL CLAMP END TRAVEL HH, P1 H, P2 P1 LHS RHS C D P2 C2-3240-DC-045 C2-3240-DC-044 C2-3240-DC-043 C2-3240-DC-042 FAULT SAFETY INTERLOCKS A TO ? BRG REAR BRG FRONT J/SP VENDOR LHS D,E E LHS OVER TRAVEL A-H RHS P1 P1 A-H A-H HH, P1 H, P2 A,B P1 D,E RHS TEAR H, P1 J A-B H RHS J-M LHS 3240-WF-1469-C1A-2"-N C2-3240-ST-095 C2-3240-ZM-241 SIZE: MATERIAL: CAPACITY: TRIM: C2-3240-BN-029 CV-041 TRAMP METAL BIN V SIZE: MATERIAL: MOTOR: 2238.00 kW C2-3240-CV-041 TERTIARY CRUSHER SURGE BIN FEED CONVEYOR NO. 2 AG KM LT ISSUED FOR CLIENT REVIEW 23-Dec-11 B RP ISSUED FOR COMBINED REVIEW 23-Jun-11 A 12/23/2011 K.MUNDY A. GUNSON T. OH L. TAMELIN 1/3/2012 1:25:11 PM WBS: 3240 B PIPING AND INSTRUMENTATION DIAGRAM SCREENING BUILDING 3200-25J-026 TERTIARY CRUSHER SURGE BIN CONV. NO. 2 V V V SIZE: C2-3240-ST-095 CV-041 TRAMP METAL CHUTE C2-3240-BN-029 V ES SIZE: C2-3240-SL-008 CV-041 BELT SCALE 3240-WF-1235-C1A-2"-N 3240-WF- -C1A-3"-N ES V V V V V V 3240 02611 XA + V V V SIZE: C2-3240-ST-099 CONVEYOR CV-041 HEAD CHUTE T4 ES V V T4 SIZE: C2-3240-MD-016 CV-041 METAL DETECTOR C2-3240-SL-008 C2-3240-MD-016 SIZE: C2-3240-MA-014 CV-041 SELF CLEANING MAGNET V V V V C2-3240-MA-014 SIZE: C2-3240-ZM-029 CV-041 BELT CLEANER STATION C2-3240-ZM-029 C2-3240-DV-051 C2-3240-CV-041 T4 ES C2-3240-ST-099 V V V V V V ES V V C2-3240-ZM-241 HYDRAULIC RAIL CLAMP ES C2-3240-DV-051 CV-041 SHUTTLE HEAD 3240 02583 XA + 3240 02618 FV + 3240 02618 FE + V C2-3240-ZE-019 C2-3240-ZE-019 CV-041 SENOR GUARD BELT RIP DECTECTOR ES ES ES D 4 F B A 3 2 1 5 6 8 E 7 C REV. APPROVED CHK. DES. REV. DATE REVISION DESCRIPTION CLIENT LEAD ENGINEER SCALE DRAWING NUMBER CHECK DESIGN CHECK DRAWING DESIGNED BY DRAWN BY APPROVAL DATE APPROVAL DATE APPROVED CHK. DES. REV. DATE REVISION DESCRIPTION REFERENCE DRAWING No. 1:100 0 1:200 5m 10m 0 5m 10m 15m 20m 1:500 10m 0 20m 30m 40m 50m 1:1000 0 100m 50m 1:20 0 0.5m 1m 1.5m 2m 0 1:25 0.5m 1m 1.5m 1:33 1/3 2.5m 2m 0 1m 2m 3m 0 1:50 1m 2m 3m 4m 5m CAD FILE NAME: P:0CAD000SPEM** MODEL UPDATED: DWG. FILE UPDATED: MANUAL CHANGES MADE: YES NO YES NO YES NO PROJECT MANAGER ENGINEERING MANAGER AREA PROJECTENGINEER REFERENCE DRAWINGS SAFETY SHARE: APPROVAL DATE CONTRACT NO. SAFETY SHARE : BA6CVA1.IGR NOTICE: THIS DRAWING HAS NOT BEEN PUBLISHED AND IS THE SOLE PROPERTY OF FLUOR AND IS LENT TO THE BORROWER FOR THEIR CONFIDENTIAL USE ONLY, AND IN CONSIDERATION OF THE LOAN OF THIS DRAWING, THE BORROWER PROMISES AND AGREES TO RETURN IT UPON REQUEST AND AGREES THAT IT WILL NOT BE REPRODUCED, COPIED LENT OR OTHERWISE DISPOSED OF DIRECTLY OR INDIRECTLY, NOR USED FOR ANY OTHER PURPOSE OTHER THAN WHICH IT IS FURNISHED. NONE Apr 2011 240K-C2- A-K A-K A-K A-K NOTE 1 NOTE 1 A B NOTE 1 NOTES: 1. IN INSTRUMENT NUMBERING SUFFIXES, LETTER "I" AND "O" ARE NOT USED. AFD
  • 35.
    T1 M RHS A-D M VENDOR VENDOR HH, P2 H, P1 3220 02709 ZI 3220 02709 ZS P1 3220 02716 LT 3220 02703B SI 3220 02783 II 3220 02783 H TI BRG REAR H,P2 HH,P1 3220 02781 XA 3220 02706 B TE 3220 02706 A TE 3220 02704 ZAH 3220 32781 HS J/SP 3220 02705 ZSH 3220 02781 II 3220 02783 HS J/SP 3220 02716 A LI 3220 02719 LAH 3220 02705 ZAHH LHS, P1 3220 02716 LI H, P2 L, P2 3220 02715 B LSH 3220 02782 HS 3220 02703 B SE 3220 02703 A ST 3220 02784 XA 3220 02784 HS 3220 02702 HSS A,B RHS 3220 02703 A SE 3220 02784 II 3220 02714 LIC 3220 02714 LE 3220 02703 B ST 3220 02720 NS 3220 02720 NA 3220 02783 JI 3220 02715 B LAH P1 3220 02707 B TE 3220 32702 SE 3220 02781 HS 3220 02704 ZSH A,B LHS 3220 32703 VI HH, P1 H, P2 A-D 3220 02714 LT 3220 32703 VE 3220 02710 SE 3220 32702 SAL L, P2 3220 02782 II 3220 02783 G TE 3220 02701 HSS A,B 3220 02783 XA FAULT 3220 02710 WE LHS 3220 02703 A SI 3220 02707 B TI 3220 02783 G TI BRG FRONT H,P2 HH,P1 3220 02715 B LE 3220 32701 LI L, P2 3220 32781 XA 3220 02708 B XS 3220 02707 A TE 3220 32704 LAH P1 3220 02717 LSL 3220 32704 LSH 3220 02702 HSA LHS A,B 3220 02708 XA P1 3220 02715 A LAH P1 3220 02717 LAL 3220 02701 HSA 3220 32701 PDI H, P2 3220 02710 WIT 3220 02714 A LI 3220 32703 VT A-D 3220 32702 SSL 3220 02710 WI 3220 32701 TI 3220 02706 B TI HH, P1 H, P2 3220 02705 ZSHH A,B 3220 02704 ZAHH 3220 02704 ZSHH 3220 02715 A LE 3220 02703 SDI 3220 32781 II 3220 02715 A LSH 3220 02716 LE 3220 02707 A TI HH, P1 H, P2 3220 02783 H TE 3220 02708 A XS TEAR 3220 02705 ZAH 3220 02782 XA 3220 02706 A TI HH, P1 H, P2 3220 02719 LSH PLANT AIR 2991 3200-25J-017 DUST DUST COLLECTOR, C2-3220-DC-122 4111 3200-25J-047 COARSE SCREEN O/S COARSE SCREEN O/S CONVEYOR NO. 1, 1810 3200-25J-023 COARSE SCREEN O/S C2-3220-BN-022 3231 3200-25J-031 SEC CRUSHER PRODUCT SEC CRUSHER DISC. CONV. NO. 1, C2-3220-CV-016 1818 3200-25J-045 DUST DUST COLLECTOR, C2-3220-DC-121 1416 3200-25J-047 FAULT P2 VENDOR RHS, P1 P1 P1 A,B DUCTING FAULT RHS LHS A, B LHS ST/SP RSH RHS A, B FAULT HH, P1 H, P2 FEEDER AFD DRIVE BIN CONTINUED ON P&ID 3200-25J-031 C2-3240-CV-015 LHS H, P1 DUCTING HH, P1 H, P2 ST/SP EXPERT SYSTEM J/SP P1 P2 VENDOR: P.O.NO.: MANUFACTURER: P1 DUCTING RHS A,B FAULT RSH LHS ES C2-3220-SL-011 C2-3220-ST-121 C2-3220-DC-065 V C2-3220-FA-065 SIZE: C2-3220-ST-157 SEC CRUSHER NO. 1 FEED CHUTE-SPARE SIZE: MOTOR: 2.24 kW C2-3220-BL-020 SEC CRUSHER NO.1 DUST SEAL BLOWER SIZE: MOTOR: C2-3220-CR-011 SEC CRUSHER NO. 1 SIZE: MOTOR: C2-3220-FE-031 SEC CRUSHER FEEDER NO. 1 AG KM LT ISSUED FOR CLIENT REVIEW 23-Dec-11 B RP ISSUED FOR COMBINED REVIEW 23-Jun-11 A 12/23/2011 K.MUNDY A. GUNSON T. OH L. TAMELIN 12/23/2011 1:57:47 PM WBS: 3220 B PIPING AND INSTRUMENTATION DIAGRAM SECONDARY CRUSHING 3200-25J-027 SECONDARY CRUSHER NO. 1 SIZE: MOTOR: C2-3220-FA-065 SEC CRUSHER SURGE BIN DUST COLLECTOR NO. 2 FAN C2-3220-BN-021 C2-3220-ST-131 V C2-3220-FE-031 C2-3220-BL-020 TO ATMOSPHERE V V V V V V C2-3220-CR-011 V V C2-3220-ST-141 V V V V V V V 3220-AP-1287-C1A-2"-N V 3220-AP-1040-C1A-2"-N ES ES SIZE: C2-3220-SL-011 SEC CRUSHER FEEDER NO.1 VOLUMETRIC BELT SCALE ES SIZE: 850t LIVE MATERIAL: CAPACITY: TRIM:C1A C2-3220-BN-021 SEC CRUSHER NO. 1 SURGE BIN V ES V V V SIZE: C2-3220-ST-131 SEC CRUSHER NO.1 FEED CHUTE V ES V TO ATMOSPHERE C2-3220-FA-066 C2-3220-DC-066 ES SIZE: C2-3220-ST-121 SEC CRUSHER NO. 1 SURGE BIN RECLAIM FEEDER SKIRT V ES SIZE: C2-3220-DC-065 SEC CRUSHER SURGE BIN DUST COLLECTOR NO. 2 ES V V V ES ES SIZE: C2-3220-ST-141 SEC CRUSHER NO.1 DISCHARGE CHUTE SIZE: C2-3220-MD-047 FE-031 METAL DETECTOR SIZE: MOTOR: C2-3220-FA-066 SEC CRUSHER SURGE BIN DUST COLLECTOR NO. 1 FAN SIZE: C2-3220-DC-066 SEC CRUSHER SURGE BIN DUST COLLECTOR NO. 1 V ES C2-3220-MD-047 D 4 F B A 3 2 1 5 6 8 E 7 C REV. APPROVED CHK. DES. REV. DATE REVISION DESCRIPTION CLIENT LEAD ENGINEER SCALE DRAWING NUMBER CHECK DESIGN CHECK DRAWING DESIGNED BY DRAWN BY APPROVAL DATE APPROVAL DATE APPROVED CHK. DES. REV. DATE REVISION DESCRIPTION REFERENCE DRAWING No. 1:100 0 1:200 5m 10m 0 5m 10m 15m 20m 1:500 10m 0 20m 30m 40m 50m 1:1000 0 100m 50m 1:20 0 0.5m 1m 1.5m 2m 0 1:25 0.5m 1m 1.5m 1:33 1/3 2.5m 2m 0 1m 2m 3m 0 1:50 1m 2m 3m 4m 5m CAD FILE NAME: P:0CAD000SPEM** MODEL UPDATED: DWG. FILE UPDATED: MANUAL CHANGES MADE: YES NO YES NO YES NO PROJECT MANAGER ENGINEERING MANAGER AREA PROJECTENGINEER REFERENCE DRAWINGS SAFETY SHARE: APPROVAL DATE CONTRACT NO. SAFETY SHARE : BA6CVA1.IGR NOTICE: THIS DRAWING HAS NOT BEEN PUBLISHED AND IS THE SOLE PROPERTY OF FLUOR AND IS LENT TO THE BORROWER FOR THEIR CONFIDENTIAL USE ONLY, AND IN CONSIDERATION OF THE LOAN OF THIS DRAWING, THE BORROWER PROMISES AND AGREES TO RETURN IT UPON REQUEST AND AGREES THAT IT WILL NOT BE REPRODUCED, COPIED LENT OR OTHERWISE DISPOSED OF DIRECTLY OR INDIRECTLY, NOR USED FOR ANY OTHER PURPOSE OTHER THAN WHICH IT IS FURNISHED. NONE Apr 2011 240K-C2- 3220 02722 PDAH 3220 02723 PDAH
  • 36.
    D 4 F B A 3 2 1 5 68 E 7 C REV. APPROVED CHK. DES. REV. DATE REVISION DESCRIPTION CLIENT LEAD ENGINEER SCALE DRAWING NUMBER CHECK DESIGN CHECK DRAWING DESIGNED BY DRAWN BY APPROVAL DATE APPROVAL DATE APPROVED CHK. DES. REV. DATE REVISION DESCRIPTION REFERENCE DRAWING No. 1:100 0 1:200 5m 10m 0 5m 10m 15m 20m 1:500 10m 0 20m 30m 40m 50m 1:1000 0 100m 50m 1:20 0 0.5m 1m 1.5m 2m 0 1:25 0.5m 1m 1.5m 1:33 1/3 2.5m 2m 0 1m 2m 3m 0 1:50 1m 2m 3m 4m 5m CAD FILE NAME: P:0CAD000SPEM** MODEL UPDATED: DWG. FILE UPDATED: MANUAL CHANGES MADE: YES NO YES NO YES NO PROJECT MANAGER ENGINEERING MANAGER AREA PROJECTENGINEER REFERENCE DRAWINGS SAFETY SHARE: APPROVAL DATE CONTRACT NO. SAFETY SHARE : BA6CVA1.IGR NOTICE: THIS DRAWING HAS NOT BEEN PUBLISHED AND IS THE SOLE PROPERTY OF FLUOR AND IS LENT TO THE BORROWER FOR THEIR CONFIDENTIAL USE ONLY, AND IN CONSIDERATION OF THE LOAN OF THIS DRAWING, THE BORROWER PROMISES AND AGREES TO RETURN IT UPON REQUEST AND AGREES THAT IT WILL NOT BE REPRODUCED, COPIED LENT OR OTHERWISE DISPOSED OF DIRECTLY OR INDIRECTLY, NOR USED FOR ANY OTHER PURPOSE OTHER THAN WHICH IT IS FURNISHED. NONE Apr 2011 240K-C2- A-D M 3220 03181 II 3220 03181 XA 3220 03181 HS 3220 03182 II 3220 03182 XA 3220 03182 HS 3220 03116 A LI 3220 03116 LI 3220 03117 LSL 3220 03117 LAL 3220 03116 LE 3220 03116 LT 3220 03110 SE 3220 03106 A TE 3220 03106 A TI HH, P1 H, P2 3220 03107 A TE HH, P1 H, P2 3220 03107 A TI 3220 03105 ZSH 3220 03105 ZSHH RHS 3220 03104 ZSH LHS 3220 03104 ZSHH 3220 03105 ZAHH LHS, P1 3220 03104 ZAHH 3220 03102 HSS RHS 3220 03101 HSS 3220 03102 HSA 3220 03101 HSA 3220 03110 WE LHS 3220 03110 WIT 3220 03110 WI 3220 03108 A XS 3220 03108 B XS 3220 03108 XA P1 3220 03103 B SE FEEDER AFD DRIVE 3220 03107 B TI 3220 03106 B TE 3220 03107 B TE HH, P1 H, P2 3220 03103 B ST 3220 03106 B TI HH, P1 H, P2 3220 03103 B SI 3220 03103 SDI 3220 33181 HS J/SP 3220 03115 A LSH 3220 33181 II 3220 03114 LE 3220 03114 LT 3220 03115 A LAH 3220 03114 A LI 3220 03114 LIC 3220 33104 LSH 3220 33104 LAH P1 3220 33103 VE 3220 33103 VT A-D 3220 33103 VI HH, P1 H, P2 A-D 3220 03119 LSH 3220 03119 LAH 3220 03183 G TE 3220 03183 H TE 3220 03183 G TI BRG FRONT H,P2 HH,P1 3220 03183 H TI BRG REAR H,P2 HH,P1 3220 03183 HS J/SP 3220 03183 JI 3220 03183 II 3220 03183 XA 3220 33102 SE 3220 33102 SSL 3220 33102 SAL P2 ST/SP FAULT J/SP FAULT P1 RHS, P1 RHS A,B EXPERT SYSTEM H, P1 VENDOR: P.O.NO.: MANUFACTURER: P1 DUCTING BIN CONTINUED ON P&ID 3200-25J-032 3220-AP1039-C1A-2"-N C2-3220-ST-122 C2-3220-SL-012 C2-3220-ST-132 C2-3220-CR-012 C2-3220-ST-142 C2-3220-BL-021 C2-3220-DC-067 C2-3220-FA-067 C2-3220-FE-032 SIZE: 850t LIVE MATERIAL: CAPACITY: TRIM:C1A C2-3220-BN-022 SEC CRUSHER NO.2 SURGE BIN C2-3220-BN-022 H, P2 L, P2 LHS RSH A,B A,B LHS A,B P1 P1 P1 3220 33101 LI L, P2 HH, P1 H, P2 DUCTING DUCTING 3220 33101 TI 3220 33101 PDI HH, P2 H, P1 H, P2 V V SIZE: C2-3220-SL-012 SEC CRUSHER FEEDER NO.2 VOLUMETRIC BELT SCALE SIZE: C2-3220-ST-132 SEC CRUSHER NO. 2 FEED CHUTE SIZE: C2-3220-ST-142 SEC CRUSHER NO. 2 DISCHARGE CHUTE 3220 33181 XA 3220 03105 ZAH 3220 03104 ZAH P2 P2 A,B A,B TEAR 3220 03103 A SI 3220 03103 A SE 3220 03103 A ST 3220 03115 A LE 3220 03115 B LSH 3220 03115 B LAH P1 3220 03115 B LE C2-3240-CV-015 TO ATMOSPHERE BIN CONTINUED ON P&ID 3200-25J-027 SEC CRUSHER PRODUCT SEC CRUSHER DISCH. CONV. NO. 1, C2-3220-CV-016 1820 3200-25J-045 DUST DUST COLLECTOR, C2-3220-DC-121 1417 3200-25J-047 ES ES V V V ES ES V V V V ES ES V ES V ES V ES V ES T1 AG KM LT ISSUED FOR CLIENT REVIEW 23-Dec-11 B RP ISSUED FOR COMBINED REVIEW 23-Jun-11 A 12/23/2011 K.MUNDY A. GUNSON T. OH L. TAMELIN 1/3/2012 7:51:16 AM WBS: 3220 B PIPING AND INSTRUMENTATION DIAGRAM SECONDARY CRUSHING 3200-25J-031 SECONDARY CRUSHER NO. 2 A,B RHS LHS FAULT FAULT COARSE SCREEN O/S COARSE SCREEN O/S CONVEYOR NO. 1, 3231 3200-25J-027 COARSE SCREEN O/S SEC SURGE BIN NO.3, C2-3220-BN-023 3234 3200-25J-032 SIZE: MOTOR: 2.24 kW C2-3220-BL-021 SEC CRUSHER NO. 2 DUST SEAL BLOWER SIZE: MOTOR: 932.00 kW C2-3220-CR-012 SEC CRUSHER NO.2 SIZE: MOTOR: C2-3220-FE-032 SEC CRUSHER NO. 2 FEEDER SIZE: C2-3220-ST-122 SEC CRUSHER NO. 2 SURGE BIN FEEDER SKIRT SIZE: MOTOR: C2-3220-FA-067 SEC CRUSHER SURGE BIN DUST COLLECTOR NO.2 FAN SIZE: C2-3220-DC-067 SEC CRUSHER SURGE BIN DUST COLLECTOR NO. 2 V V V V V 3220 03120 NS 3220 03120 NA V ES C2-3220-MD-048 SIZE: C2-3220-MD-048 FE-032 METAL DETECTOR RHS LHS V V V V V V V V A,B A,B V V M 3220 03184 II 3220 03184 XA 3220 03184 HS ST/SP FAULT C2-3220-DC-068 C2-3220-FA-068 TO ATMOSPHERE SIZE: MOTOR: C2-3220-FA-068 SEC CRUSHER SURGE BIN DUST COLLECTOR NO.1 FAN SIZE: C2-3220-DC-068 SEC CRUSHER SURGE BIN DUST COLLECTOR NO. 1 3220-AP-1288-C1A-2"-N PLANT AIR 2990 3200-25J-017 VENDOR VENDOR DUST DUST COLLECTOR, C2-3220-DC-122 4118 3200-25J-047 VENDOR 3220 03109 ZS 3220 03109 ZI P1 ES 3220 03122 PDAH 3220 03123 PDAH
  • 37.
    T1 M LHS LHS A,B A-D M HH, P2 H, P1 3220 33203 VI HH,P1 H, P2 A-D 3220 03205 ZAHH LHS, P1 3220 03207 A TI HH, P1 H, P2 3220 03214 LIC 3220 03217 LAL 3220 03215 A LAH P1 3220 03201 HSS LHS RHS A,B 3220 33281 HS J/SP 3220 03282 II 3220 03210 WIT 3220 03281 HS 3220 03283 H TE 3220 03219 LSH 3220 33202 SSL 3220 33204 LSH 3220 03202 HSA 3220 03207 B TE HH, P1 H, P2 3220 03207 B TI 3220 03283 H TI BRG REAR H,P2 HH,P1 3220 03201 HSA 3220 03214 LT 3220 03282 XA 3220 03281 XA VENDOR 3220 03203 B SE 3220 03216 A LI 3220 03283 JI 3220 03217 LSL 3220 03214 A LI 3220 03215 A LSH 3220 03282 HS 3220 33281 XA 3220 33281 II 3220 03215 B LSH 3220 03283 HS J/SP 3220 03210 WI 3220 03205 ZAH 3220 03203 A ST 3220 33202 SAL P2 3220 33202 SE 3220 33203 VT A-D 3220 03204 ZAHH 3220 03204 ZSH 3220 03283 G TI BRG FRONT H,P2 HH,P1 3220 03210 SE 3220 03210 WE 3220 03203 SDI 3220 03204 ZSHH A,B 3220 03203 A SI 3220 33204 LAH P1 3220 03203 B ST 3220 03215 B LAH P1 3220 03283 G TE 3220 03206 B TI HH, P1 H, P2 3220 33201 PDI H, P2 3220 03220 NA 3220 03220 NS 3220 03204 ZAH 3220 03208 XA P1 3220 03216 LI H, P2 L, P2 3220 03215 B LE 3220 03216 LE 3220 33201 LI L, P2 3220 03283 II 3220 03219 LAH 3220 03216 LT 3220 03215 A LE 3220 03203 B SI 3220 03281 XA 3220 03281 II 3220 03208 B XS 3220 03208 A XS TEAR 3220 33203 VE 3220 03281 HS 3220 03203 A SE 3220 03205 ZSH 3220 03202 HSS A,B 3220 03206 A TI HH, P1 H, P2 3220 03214 LE 3220 03281 II 3220 03206 B TE 3220 33201 TI 3220 03207 A TE 3220 03205 ZSHH 3220 03283 XA 3220 03206 A TE PLANT AIR 2989 3200-25J-017 DUST DUST COLLECTOR, C2-3220-DC-122 4122 COARSE SCREEN O/S COARSE SCREEN O/S CONVEYOR NO. 1, 3234 3200-25J-031 SEC CRUSHER PRODUCT SEC CRUSHER DISC CONV. NO. 1, C2-3220-CV-016 1821 3200-25J-045 DUST DUST COLLECTOR, C2-3220-DC-121 1418 3200-25J-047 RHS C2-3240-CV-015 P1 P1 A,B VENDOR BIN CONTINUED ON P&ID 3200-25J-033 HH, P1 H, P2 J/SP P2 P1 ST/SP LSH FEEDER AFD DRIVE EXPERT SYSTEM P1 RHS FAULT P2 P1 FAULT FAULT LHS A,B FAULT DUCTING RHS LHS RHS ST/SP VENDOR: P.O.NO.: MANUFACTURER: FAULT A,B A,B DUCTING BIN CONTINUED ON P&ID 3200-25J-031 RHS A,B H, P1 DUCTING SIZE: C2-3220-SL-013 SEC CRUSHER FEEDER NO.3 VOLUMETRIC BELT SCALE C2-3220-FE-033 C2-3220-SL-013 C2-3220-DC-141 TO ATMOSPHERE SIZE: C2-3220-ST-123 SEC CRUSHER NO. 3 SURGE BIN RECLAIM FEEDER SKIRT C2-3220-ST-143 SIZE: C2-3220-ST-133 SEC CRUSHER NO. 3 FEED CHUTE V C2-3220-BN-023 C2-3220-CR-013 3220-AP-1038-C1A-2"-N V C2-3220-ST-123 SIZE: MP 1250 MOTOR: 932.00 kW C2-3220-CR-013 SEC CRUSHER NO.3 SIZE: MOTOR: C2-3220-FE-033 SEC CRUSHER NO. 3 FEEDER SIZE: MOTOR: C2-3220-FA-141 SEC CRUSHER SURGE BIN DUST COLLECTOR NO. 2 FAN SIZE: 850t LIVE MATERIAL: CAPACITY: TRIM:C1A C2-3220-BN-023 SEC CRUSHER NO. 3 SURGE BIN V SIZE: MOTOR: 2.24 kW C2-3220-BL-025 SEC CRUSHER NO. 3 DUST SEAL BLOWER AG KM LT ISSUED FOR CLIENT REVIEW 23-Dec-11 B RP ISSUED FOR COMBINED REVIEW 23-Jun-11 A 12/23/2011 K.MUNDY A. GUNSON T. OH L. TAMELIN 1/3/2012 1:27:46 PM WBS: 3220 B PIPING AND INSTRUMENTATION DIAGRAM SECONDARY CRUSHING 3200-25J-032 SECONDARY CRUSHER NO. 3 C2-3220-ST-133 SIZE: C2-3220-ST-143 SEC CRUSHER NO. 3 DISCHARGE CHUTE C2-3220-BL-025 SIZE: C2-3220-DC-141 SEC CRUSHER SURGE BIN DUST COLLECTOR NO. 2 C2-3220-FA-141 3220-AP-1289-C1A-2"-N ES V ES V V ES ES V V V V V ES ES ES ES ES V V V ES V V V V V V V V V TO ATMOSPHERE C2-3220-FA-142 C2-3220-DC-142 V V SIZE: C2-3220-MD-049 FE-033 METAL DETECTOR C2-3220-MD-049 ES V V SIZE: MOTOR: C2-3220-FA-142 SEC CRUSHER SURGE BIN DUST COLLECTOR NO. 1 FAN SIZE: C2-3220-DC-142 SEC CRUSHER SURGE BIN DUST COLLECTOR NO. 1 D 4 F B A 3 2 1 5 6 8 E 7 C REV. APPROVED CHK. DES. REV. DATE REVISION DESCRIPTION CLIENT LEAD ENGINEER SCALE DRAWING NUMBER CHECK DESIGN CHECK DRAWING DESIGNED BY DRAWN BY APPROVAL DATE APPROVAL DATE APPROVED CHK. DES. REV. DATE REVISION DESCRIPTION REFERENCE DRAWING No. 1:100 0 1:200 5m 10m 0 5m 10m 15m 20m 1:500 10m 0 20m 30m 40m 50m 1:1000 0 100m 50m 1:20 0 0.5m 1m 1.5m 2m 0 1:25 0.5m 1m 1.5m 1:33 1/3 2.5m 2m 0 1m 2m 3m 0 1:50 1m 2m 3m 4m 5m CAD FILE NAME: P:0CAD000SPEM** MODEL UPDATED: DWG. FILE UPDATED: MANUAL CHANGES MADE: YES NO YES NO YES NO PROJECT MANAGER ENGINEERING MANAGER AREA PROJECTENGINEER REFERENCE DRAWINGS SAFETY SHARE: APPROVAL DATE CONTRACT NO. SAFETY SHARE : BA6CVA1.IGR NOTICE: THIS DRAWING HAS NOT BEEN PUBLISHED AND IS THE SOLE PROPERTY OF FLUOR AND IS LENT TO THE BORROWER FOR THEIR CONFIDENTIAL USE ONLY, AND IN CONSIDERATION OF THE LOAN OF THIS DRAWING, THE BORROWER PROMISES AND AGREES TO RETURN IT UPON REQUEST AND AGREES THAT IT WILL NOT BE REPRODUCED, COPIED LENT OR OTHERWISE DISPOSED OF DIRECTLY OR INDIRECTLY, NOR USED FOR ANY OTHER PURPOSE OTHER THAN WHICH IT IS FURNISHED. NONE Apr 2011 240K-C2- 3220 03209 ZS 3220 03209 ZI P1 ES VENDOR 3220 03222 PDAH 3220 03223 PDAH
  • 38.
    V D 4 F B A 3 2 1 5 68 E 7 C REV. APPROVED CHK. DES. REV. DATE REVISION DESCRIPTION CLIENT LEAD ENGINEER SCALE DRAWING NUMBER CHECK DESIGN CHECK DRAWING DESIGNED BY DRAWN BY APPROVAL DATE APPROVAL DATE APPROVED CHK. DES. REV. DATE REVISION DESCRIPTION REFERENCE DRAWING No. 1:100 0 1:200 5m 10m 0 5m 10m 15m 20m 1:500 10m 0 20m 30m 40m 50m 1:1000 0 100m 50m 1:20 0 0.5m 1m 1.5m 2m 0 1:25 0.5m 1m 1.5m 1:33 1/3 2.5m 2m 0 1m 2m 3m 0 1:50 1m 2m 3m 4m 5m CAD FILE NAME: P:0CAD000SPEM** MODEL UPDATED: DWG. FILE UPDATED: MANUAL CHANGES MADE: YES NO YES NO YES NO PROJECT MANAGER ENGINEERING MANAGER AREA PROJECTENGINEER REFERENCE DRAWINGS SAFETY SHARE: APPROVAL DATE CONTRACT NO. SAFETY SHARE : BA6CVA1.IGR NOTICE: THIS DRAWING HAS NOT BEEN PUBLISHED AND IS THE SOLE PROPERTY OF FLUOR AND IS LENT TO THE BORROWER FOR THEIR CONFIDENTIAL USE ONLY, AND IN CONSIDERATION OF THE LOAN OF THIS DRAWING, THE BORROWER PROMISES AND AGREES TO RETURN IT UPON REQUEST AND AGREES THAT IT WILL NOT BE REPRODUCED, COPIED LENT OR OTHERWISE DISPOSED OF DIRECTLY OR INDIRECTLY, NOR USED FOR ANY OTHER PURPOSE OTHER THAN WHICH IT IS FURNISHED. NONE Apr 2011 240K-C2- A-D M 3220 03381 II 3220 03381 XA 3220 03381 HS 3220 03382 II 3220 03382 XA 3220 03382 HS 3220 03316 A LI 3220 03316 LI 3220 03317 LSL 3220 03317 LAL 3220 03316 LE 3220 03316 LT 3220 03310 SE 3220 03306 A TE 3220 03306 A TI HH, P1 H, P2 3220 03307 A TE HH, P1 H, P2 3220 03307 A TI 3220 03305 ZSH 3220 03305 ZSHH LHS 3220 03304 ZSH RHS 3220 03304 ZSHH 3220 03305 ZAHH LHS, P1 3220 03304 ZAHH 3220 03302 HSS LHS 3220 03301 HSS 3220 03301 HSA 3220 03302 HSA 3220 03310 WE RHS 3220 03310 WIT 3220 03310 WI 3220 03308 A XS 3220 03308 B XS 3220 03308 XA P1 3220 03303 B SE FEEDER AFD DRIVE 3220 03307 B TI 3220 03306 B TE 3220 03307 B TE HH, P1 H, P2 3220 03303 B ST 3220 03306 B TI HH, P1 H, P2 3220 03303 B SI 3220 03303 SDI 3220 33381 HS J/SP 3220 03315 A LSH 3220 33381 II 3220 03314 LE 3220 03314 LT 3220 03315 A LAHH 3220 03314 A LI 3220 03314 LIC 3220 03304 LSH 3220 03304 LAH P1 3220 03303 VE 3220 03303 VT A-D 3220 03303 VI HH, P1 H, P2 A-D 3220 03319 LSH 3220 03319 LAH 3220 03383 G TE 3220 03383 H TE 3220 03383 G TI BRG FRONT H,P2 HH,P1 3220 03383 H TI BRG REAR H,P2 HH,P1 3220 03383 HS J/SP 3220 03383 JI 3220 03383 II 3220 03383 XA 3220 33302 SE 3220 33302 SSL 3220 33302 SAL P2 ST/SP FAULT J/SP FAULT P1 RHS, P1 LHS A,B EXPERT SYSTEM H, P1 VENDOR: P.O.NO.: MANUFACTURER: P1 DUCTING BIN CONTINUED ON P&ID 3200-25J-032 C2-3220-ST-124 C2-3220-SL-014 C2-3220-ST-134 C2-3220-CR-014 C2-3220-ST-144 C2-3220-BL-023 C2-3220-DC-143 C2-3220-FA-143 C2-3220-FE-034 SIZE: 850t LIVE MATERIAL: CAPACITY: TRIM:C1A C2-3220-BN-024 SEC CRUSHER NO. 4 SURGE BIN C2-3220-BN-024 H, P2 L, P2 RHS LSH A,B A,B RHS A,B P1 P1 P1 3220 33301 LI L, P2 HH, P1 H, P2 DUCTING DUCTING 3220 33301 TI 3220 33301 PDI HH, P2 H, P1 H, P2 SIZE: C2-3220-DC-143 SEC CRUSHER SURGE BIN DUST COLLECTOR NO. 2 V V SIZE: C2-3220-ST-124 SEC CRUSHER NO. 4 SURGE BIN FEEDER SKIRT SIZE: C2-3220-SL-014 SEC CRUSHER FEEDER NO.4 VOLUMETRIC BELT SCALE SIZE: C2-3220-ST-134 SEC CRUSHER NO. 4 FEED CHUTE SIZE: C2-3220-ST-144 SEC CRUSHER NO. 4 DISCHARGE CHUTE 3220 33381 XA 3220 03305 ZAH 3220 03304 ZAH P2 P2 A,B A,B TEAR 3220 03303 A SI 3220 03303 A SE 3220 03303 A ST 3220 03315 A LE 3220 03315 B LSH 3220 03315 B LAHH P1 3220 03315 B LE C2-3240-CV-015 SEC CRUSHER PRODUCT SEC CRUSHER DISC CONV. NO. 1 C2-3220-CV-016 1946 3200-25J-046 DUST DUST COLLECTOR, C2-3220-DC-121 1421 3200-25J-047 TO ATMOSPHERE V V V ES ES ES ES ES V V V V ES ES V ES V ES ES V T1 AG KM LT ISSUED FOR CLIENT REVIEW 23-Dec-11 B RP ISSUED FOR COMBINED REVIEW 23-Jun-11 A 12/23/2011 K.MUNDY A. GUNSON T. OH L. TAMELIN 12/23/2011 3:12:04 PM WBS: 3220 B PIPING AND INSTRUMENTATION DIAGRAM SECONDARY CRUSHING 3200-25J-033 SECONDARY CRUSHER NO. 4 A,B LHS RHS FAULT COARSE SCREEN O/S COARSE SCREEN O/S CONVEYOR NO.1 1941 3200-25J-024 COARSE SCREEN O/S SEC CRUSHER SURGE BIN NO. 5 3241 3200-25J-034 SIZE: MOTOR: 2.24 kW C2-3220-BL-023 SEC CRUSHER NO. 4 DUST SEAL BLOWER SIZE: C2-3220-ST-158 SEC CRUSHER FEED CHUTE-SPARE SIZE: MOTOR: 932.00 kW C2-3220-CR-014 SECONDARY CRUSHER NO.4 SIZE: MOTOR: C2-3220-FE-034 SEC CRUSHER NO. 4 FEEDER SIZE: MOTOR: C2-3220-FA-143 SEC CRUSHER SURGE BIN DUST COLLECTOR NO. 2 FAN V V V V V 3220 03320 NS 3220 03320 NA V ES C2-3220-MD-050 SIZE: C2-3220-MD-050 FE-041 METAL DETECTOR RHS LHS V V V V V V V V A,B A,B V V M 3220 03384 II 3220 03384 XA 3220 03384 HS ST/SP FAULT C2-3220-DC-144 C2-3220-FA-144 TO ATMOSPHERE SIZE: MOTOR: C2-3220-FA-144 SEC CRUSHER SURGE BIN DUST COLLECTOR NO. 1 FAN SIZE: C2-3220-DC-144 SEC CRUSHER SURGE BIN DUST COLLECTOR NO. 1 3220-AP-1290-C1A-2"-N C2-3220-BN-026 3220-AP-1037-C1A-2"-N PLANT AIR 2994 3200-25J-017 VENDOR VENDOR ES 3220 03309 ZS 3220 03309 ZI P1 VENDOR DUST DUST COLLECTOR, C2-3220-DC-123 4124 3200-25J-047 3220 03322 PDAH 3220 03323 PDAH
  • 39.
    M M LHS T1 A-D VENDOR VENDOR FEEDER AFD DRIVE HH,P2 H, P1 3220 03484 HS 3220 03484 XA 3220 03484 II VENDOR 3220 03482 HS 3220 03483 II 3220 03414 LE 3220 03420 NA 3220 03420 NS 3220 03419 LAH 3220 03403 B SI 3220 03417 LSL 3220 03407 B TI 3220 03401 HSA 3220 03409 ZS 3220 03409 ZI 3220 03403 A SI 3220 03407 A TE 3220 03403 A SE 3220 03483 G TI BRG FRONT H,P2 HH,P1 3220 3405 ZAHH LHS, P1 3220 03406 A TE 3220 03403 B ST 3220 03414 LT 3220 33403 VI HH, P1 H, P2 A-D 3220 03404 ZAH 3220 33403 VE 3220 33404 LSH 3220 03482 XA 3220 03403 SDI 3220 03410 WI 3220 33481 HS J/SP 3220 03406 B TE 3220 03402 HSA LHS A,B 3220 03404 ZSHH A,B 3220 03416 LT 3220 03404 ZAHH 3220 3405 ZAH 3220 33401 LI L, P2 3220 03407 B TE HH, P1 H, P2 3220 33402 SAL P2 3220 03415 LSH 3220 03417 LAL 3220 03405 ZSH RHS 3220 03415 B LSH 3220 03483 H TE 3220 03483 XA 3220 33481 II 3220 33401 TI 3220 03403 A ST 3220 03481 II 3220 03410 SE 3220 03405 ZSHH 3220 03481 HS 3220 03483 JI FAULT 3220 03414 A LI 3220 33401 PDI H, P2 3220 03408 XA P1 3220 03406 A TI HH, P1 H, P2 3220 03415 B LE 3220 03407 A TI HH, P1 H, P2 3220 03483 H TI BRG REAR H,P2 HH,P1 3220 03403 B SE 3220 03408 B XS 3220 03419 LSH 3220 03414 LIC 3220 33402 SSL 3220 03482 II 3220 33403 VT A-D 3220 03410 WIT 3220 03408 A XS TEAR 3220 03401 HSS RHS A,B 3220 03416 LI H, P2 L, P2 3220 03481 XA 3220 03415 B LAH P1 3220 03415 A LE 3220 03404 ZSH 3220 33402 SE 3220 33481 XA 3220 33404 LAH P1 3220 03402 HSS A,B 3220 03416 A LI 3220 03483 G TE 3220 03415 LAH P1 3220 03483 HS J/SP 3220 03406 B TI HH, P1 H, P2 3220 03416 LE 3220 03410 WE PLANT AIR 2993 3200-25J-017 SEC CRUSHER PRODUCT SEC CRUSHER DISC CONV. NO. 2 C2-3220-CV-026 1951 3200-25J-046 DUST DUST COLLECTOR, C2-3220-DC-151 1422 3200-25J-047 COARSE SCREEN O/S COARSE SCREEN O/S CONVEYOR NO 1 3241 3200-25J-033 COARSE SCREEN O/S SEC CRUSHER SURGE BIN NO.6 3247 3200-25J-035 A,B A,B FAULT ST/SP A,B LHS RHS C2-3200-BN-027 P1 P1 RHS LHS LHS LSH H, P1 RHS A,B P1 P2 P2 C2-3240-CV-015 ST/SP A,B J/SP FAULT RHS, P1 BIN CONTINUED ON P&ID 3200-25J-035 DUCTING HH, P1 H, P2 DUCTING DUCTING FAULT VENDOR: P.O.NO.: MANUFACTURER: P1 FAULT RHS EXPERT SYSTEM P1 TO ATMOSPHERE ES C2-3220-BL-024 SIZE: C2-3220-ST-135 SEC CRUSHER NO. 5 FEED CHUTE C2-3220-BN-025 V C2-3220-ST-135 V C2-3220-ST-145 C2-3220-FA-131 C2-3220-DC-131 SIZE: C2-3220-SL-041 SEC CRUSHER FEEDER NO.5 VOLUMETRIC BELT SCALE SIZE: C2-3220-ST-145 SEC CRUSHER NO. 5 DISCHARGE CHUTE SIZE: C2-3220-ST-125 SEC CRUSHER SURGE BIN RECLAIM FEEDER SKIRT SIZE: C2-3220-DC-131 SEC CRUSHER SURGE BIN DUST COLLECTOR NO. 2 C2-3220-FE-040 AG KM LT ISSUED FOR CLIENT REVIEW 23-Dec-11 B RP ISSUED FOR COMBINED REVIEW 23-Jun-11 A 12/23/2011 K.MUNDY A. GUNSON T. OH L. TAMELIN 1/3/2012 7:53:05 AM WBS: 3220 B PIPING AND INSTRUMENTATION DIAGRAM SECONDARY CRUSHING 3200-25J-034 SECONDARY CRUSHER NO. 5 C2-3220-SL-041 C2-3220-ST-125 C2-3220-CR-021 SIZE: MOTOR: 2.24 kW C2-3220-BL-024 SEC CRUSHER NO. 5 DUST SEAL BLOWER SIZE: MOTOR: 932.00 kW C2-3220-CR-021 SEC CRUSHER NO.5 SIZE: MOTOR: C2-3220-FA-131 SEC CRUSHER SURGE BIN DUST COLLECTOR NO. 2 FAN SIZE: MOTOR: C2-3220-FE-040 SEC CRUSHER NO. 5 FEEDER SIZE: 850t LIVE MATERIAL: CAPACITY: TRIM: C2-3220-BN-025 SEC CRUSHER NO. 5 SURGE BIN V V ES V ES V V V V V ES ES ES V ES ES ES ES ES V V V 3220-AP-1036-C1A-2"-N 3220-AP-1291-C1A-2"-N V V V V C2-3220-MD-051 ES V SIZE: C2-3220-MD-051 FE-042 METAL DETECTOR V V V V V V V V V V C2-3220-FA-130 C2-3220-DC-130 TO ATMOSPHERE SIZE: C2-3220-DC-130 SEC CRUSHER SURGE BIN DUST COLLECTOR NO. 1 SIZE: MOTOR: C2-3220-FA-130 SEC CRUSHER SURGE BIN DUST COLLECTOR NO. 1 FAN D 4 F B A 3 2 1 5 6 8 E 7 C REV. APPROVED CHK. DES. REV. DATE REVISION DESCRIPTION CLIENT LEAD ENGINEER SCALE DRAWING NUMBER CHECK DESIGN CHECK DRAWING DESIGNED BY DRAWN BY APPROVAL DATE APPROVAL DATE APPROVED CHK. DES. REV. DATE REVISION DESCRIPTION REFERENCE DRAWING No. 1:100 0 1:200 5m 10m 0 5m 10m 15m 20m 1:500 10m 0 20m 30m 40m 50m 1:1000 0 100m 50m 1:20 0 0.5m 1m 1.5m 2m 0 1:25 0.5m 1m 1.5m 1:33 1/3 2.5m 2m 0 1m 2m 3m 0 1:50 1m 2m 3m 4m 5m CAD FILE NAME: P:0CAD000SPEM** MODEL UPDATED: DWG. FILE UPDATED: MANUAL CHANGES MADE: YES NO YES NO YES NO PROJECT MANAGER ENGINEERING MANAGER AREA PROJECTENGINEER REFERENCE DRAWINGS SAFETY SHARE: APPROVAL DATE CONTRACT NO. SAFETY SHARE : BA6CVA1.IGR NOTICE: THIS DRAWING HAS NOT BEEN PUBLISHED AND IS THE SOLE PROPERTY OF FLUOR AND IS LENT TO THE BORROWER FOR THEIR CONFIDENTIAL USE ONLY, AND IN CONSIDERATION OF THE LOAN OF THIS DRAWING, THE BORROWER PROMISES AND AGREES TO RETURN IT UPON REQUEST AND AGREES THAT IT WILL NOT BE REPRODUCED, COPIED LENT OR OTHERWISE DISPOSED OF DIRECTLY OR INDIRECTLY, NOR USED FOR ANY OTHER PURPOSE OTHER THAN WHICH IT IS FURNISHED. NONE Apr 2011 240K-C2- DUST DUST COLLECTOR, C2-3220-DC-152 4131 3200-25J-047 3220 03422 PDAH 3220 03423 PDAH
  • 40.
    D 4 F B A 3 2 1 5 68 E 7 C REV. APPROVED CHK. DES. REV. DATE REVISION DESCRIPTION CLIENT LEAD ENGINEER SCALE DRAWING NUMBER CHECK DESIGN CHECK DRAWING DESIGNED BY DRAWN BY APPROVAL DATE APPROVAL DATE APPROVED CHK. DES. REV. DATE REVISION DESCRIPTION REFERENCE DRAWING No. 1:100 0 1:200 5m 10m 0 5m 10m 15m 20m 1:500 10m 0 20m 30m 40m 50m 1:1000 0 100m 50m 1:20 0 0.5m 1m 1.5m 2m 0 1:25 0.5m 1m 1.5m 1:33 1/3 2.5m 2m 0 1m 2m 3m 0 1:50 1m 2m 3m 4m 5m CAD FILE NAME: P:0CAD000SPEM** MODEL UPDATED: DWG. FILE UPDATED: MANUAL CHANGES MADE: YES NO YES NO YES NO PROJECT MANAGER ENGINEERING MANAGER AREA PROJECTENGINEER REFERENCE DRAWINGS SAFETY SHARE: APPROVAL DATE CONTRACT NO. SAFETY SHARE : BA6CVA1.IGR NOTICE: THIS DRAWING HAS NOT BEEN PUBLISHED AND IS THE SOLE PROPERTY OF FLUOR AND IS LENT TO THE BORROWER FOR THEIR CONFIDENTIAL USE ONLY, AND IN CONSIDERATION OF THE LOAN OF THIS DRAWING, THE BORROWER PROMISES AND AGREES TO RETURN IT UPON REQUEST AND AGREES THAT IT WILL NOT BE REPRODUCED, COPIED LENT OR OTHERWISE DISPOSED OF DIRECTLY OR INDIRECTLY, NOR USED FOR ANY OTHER PURPOSE OTHER THAN WHICH IT IS FURNISHED. NONE Apr 2011 240K-C2- A-D M 3220 03581 II 3220 03581 XA 3220 03581 HS 3220 03582 II 3220 03582 XA 3220 03582 HS 3220 03516 B LI 3220 03516 A LI 3220 03517 LSL 3220 03517 LAL 3220 03516 LE 3220 03516 LT 3220 03510 SE 3220 03506 A TE 3220 03506 A TI HH, P1 H, P2 3220 03507 A TE HH, P1 H, P2 3220 03507 A TI 3220 03505 ZSH 3220 03505 ZSHH 3220 03504 ZSH 3220 03504 ZSHH 3220 03505 ZAHH LHS, P1 3220 03504 ZAHH 3220 03502 HSS LHS 3220 03501 HSS 3220 03502 HSA 3220 03501 HSA 3220 03510 WE RHS 3220 03510 WIT 3220 03510 WI 3220 03508 A XS 3220 03508 B XS 3220 03508 XA P1 3220 03503 B SE FEEDER AFD DRIVE 3220 03507 B TI 3220 03506 B TE 3220 03507 B TE HH, P1 H, P2 3220 03503 B ST 3220 03506 B TI HH, P1 H, P2 3220 03503 B SI 3220 03503 SDI 3220 33581 HS J/SP 3220 03515 A LSH 3220 33581 II 3220 03514 LE 3220 03514 LT 3220 03515 A LAH 3220 03514 A LI 3220 03514 LIC 3220 33504 LSH 3220 33504 LAH P1 3220 33503 VE 3220 33503 VT A-D 3220 33503 VI HH, P1 H, P2 A-D 3220 03519 LSH 3220 03519 LAH 3220 03583 G TE 3220 03583 H TE 3220 03583 G TI BRG FRONT H,P2 HH,P1 3220 03583 H TI BRG REAR H,P2 HH,P1 3220 03583 HS J/SP 3220 03583 JI 3220 03583 II 3220 03583 XA 3220 33502 SE 3220 33502 SSL 3220 33502 SAL P2 ST/SP FAULT J/SP FAULT P1 RHS, P1 LHS A,B EXPERT SYSTEM H, P1 VENDOR: P.O.NO.: MANUFACTURER: P1 DUCTING BIN CONTINUED ON P&ID 3200-25J-034 3220-AP1035-C1A-2"-N C2-3220-ST-126 C2-3220-SL-042 C2-3220-ST-136 C2-3220-CR-022 C2-3220-ST-146 C2-3220-BL-022 C2-3220-DC-132 C2-3220-FA-132 C2-3220-FE-041 SIZE:850t LIVE MATERIAL: CAPACITY: TRIM:C1A C2-3220-BN-026 SEC CRUSHER NO. 6 SURGE BIN C2-3220-BN-026 H, P2 L, P2 RHS RHS LSH A,B A,B RHS A,B P1 P1 P1 3220 33501 LI L, P2 HH, P1 H, P2 DUCTING DUCTING 3220 33501 TI 3220 33501 PDI HH, P2 H, P1 H, P2 SIZE: C2-3220-DC-132 SEC CRUSHER SURGE BIN DUST COLLECTOR NO. 2 V V SIZE: C2-3220-ST-126 SEC CRUSHER SURGE BIN FEEDER SKIRT SIZE: C2-3220-SL-042 SEC CRUSHER FEEDER NO.6 VOLUMETRIC BELT SCALE SIZE: C2-3220-ST-136 SEC CRUSHER NO. 6 FEED CHUTE SIZE: C2-3220-ST-146 SEC CRUSHER NO. 6 DISCHARGE CHUTE 3220 33581 XA FAULT 3220 03505 ZAH 3220 03504 ZAH P2 P2 A,B A,B TEAR 3220 03503 A SI 3220 03503 A SE 3220 03503 A ST 3220 03515 A LE 3220 03515 B LSH 3220 03515 B LAH P1 3220 03515 B LE C2-3240-CV-015 TO ATMOSPHERE SEC CRUSHER PRODUCT SEC CRUSHER DISC CONV NO. 2 C2-3220-CV-026 1956 3200-25J-046 DUST DUST COLLECTOR, C2-3220-DC-151 1423 3200-25J-047 V V V ES ES ES ES V V ES ES ES V V V ES V ES V ES V T1 AG KM LT ISSUED FOR CLIENT REVIEW 23-Dec-11 B RP ISSUED FOR COMBINED REVIEW 23-Jun-11 A 12/23/2011 K.MUNDY A. GUNSON T. OH L. TAMELIN 1/3/2012 7:40:22 AM WBS: 3220 B PIPING AND INSTRUMENTATION DIAGRAM SECONDARY CRUSHING 3200-25J-035 SECONDARY CRUSHER NO. 6 LHS A,B LHS RHS V FAULT COARSE SCREEN O/S COARSE SCREEN O/S CONVEYOR NO. 1 3247 3200-25J-034 SIZE: MOTOR: 2.24 kW C2-3220-BL-022 SEC CRUSHER NO. 6 DUST SEAL BLOWER SIZE: MOTOR: C2-3220-CR-022 SECONDARY CRUSHER NO.6 SIZE: MOTOR: C2-3220-FE-041 SEC CRUSHER NO. 6 FEEDER SIZE: MOTOR: C2-3220-FA-132 SEC CRUSHER SURGE BIN DUST COLLECTOR NO. 2 FAN V V V V RHS LHS V V 3220 03520 NS 3220 03520 NA V ES C2-3220-MD-052 SIZE: C2-3220-MD-052 FE-043 METAL DETECTOR V V V V V V V V A,B A,B M 3220 03584 II 3220 03584 XA 3220 03584 HS ST/SP FAULT C2-3220-DC-133 C2-3220-FA-133 TO ATMOSPHERE SIZE: MOTOR: C2-3220-FA-133 SEC CRUSHER SURGE BIN DUST COLLECTOR NO. 1 FAN SIZE: C2-3220-DC-133 SEC CRUSHER SURGE BIN DUST COLLECTOR NO. 1 3220-AP-1292-C1A-2"-N PLANT AIR 2992 3200-25J-017 VENDOR VENDOR BIN CONTINUED ON P&ID 3200-25J-038 DUST DUST COLLECTOR, C2-3220-DC-152 4136 3200-25J-047 VENDOR 3220 03509 ZI 3220 03509 ZS ES P1 3220 03522 PDAH 3220 03523 PDAH
  • 41.
    3220-FA-081 3220 33613 PI 3220 33602 PI H,P2 3220 33684 HS 3220 33621 ZI 3220 33683 II 3220 33604 TI H,P2 3220 33685 XA 3220 33685 II 3220 33684 II 3220 33615 TE 3220 33681 HS 3220 33615 TIT 3220 33682 HS 3220 33683 XA 3220 33683 HS 3220 33685 HS 3220 33616 TE 3220 33623 LI L,P2 LL,P2 OIL HEATERS (3) 3220 33684 XA 3220 33616 TIT 3220 33610 ZI 3220 33605 PDI H,P2 3220 33612 TI 3220 33626 TI 3220 33616 TI H,P2 HH,P2 3220 33681 II 3220 33682 XA 3220 33614 TI 3220 33611 TIECCENTRIC BUSHING 3220 33622 ZI 3220 33624 XA FAULT 3220 33625 PDI LUBE OIL FILTER 3220 33601 PI L,P2 3220 33615 TI H,P2 HH,P2 3220 33681 XA 3220 33603 LI 3220 33682 II VENDOR: P.O. NO.: MANUFACTURER: SEE VENDOR DWG NO.: OP/CL PUMP #1 DISCH. VALVE FAULT 3220-FA-082 SECONDARY CRUSHER NO.1 HYDRAULIC POWER UNIT FAULT OP/CL PUMP #2 DISCH VALVE VENDOR LOAD CONTROL PANEL FAULT FAULT H,P2 HH,P2 VENDOR: P.O. NO.: MANUFACTURER: SEE VENDOR DWG NO.: A,B,C CLAMPING CIRCUIT PRESSURE HYDRAULIC OIL SECONDARY CRUSHER NO.1 LUBE OIL COOLER HYDRAULIC OIL TANK LEVEL J/SP LUBE TANK OIL LEVEL J/SP VENDOR: P.O. NO.: MANUFACTURER: SEE VENDOR DWG NO.: DIRTY FILTER 3220-HY-021 J/SP VENDOR: P.O. NO.: MANUFACTURER: SEE VENDOR DWG NO.: 3220-PP-922 FAULT SECONDARY CRUSHER NO.1 LUBE SYSTEM 3220-PP-921 COUNTERSHAFT BEARING TRAMP RELEASE PRESSURE SECONDARY CRUSHER NO.1 L,P2 J/SP SOCKET LINER (6 HYDRAULIC HOSES BY VENDOR) BOWL POSITION H,P2 HH,P2 SUPPLY OIL H,P2 VENDOR PLC OP/CL J/SP H,P2 HH,P2 H,P2 HH,P2 C2-3220-LU-021 C2-3220-HY-023 C2-3220-CK-021 SIZE: MOTOR: C2-3220-CK-021 SECONDARY CRUSHER NO.1 LUBE OIL COOLER AG KM LT ISSUED FOR CLIENT REVIEW 23-Dec-11 B RP ISSUED FOR COMBINED REVIEW 23-Jun-11 A 12/23/2011 K.MUNDY A. GUNSON T. OH L. TAMELIN 12/23/2011 3:20:49 PM WBS: 3220 B PIPING AND INSTRUMENTATION DIAGRAM SECONDARY CRUSHING 3200-25J-036 CRUSHER NO. 1 LUBE SYSTEMS 3220-OLL-1024-S1A-3"-N SIZE: MOTOR: C2-3220-HY-023 SECONDARY CRUSHER NO.1 HYDRAULIC SET SYSTEM V 3220-OLL-1025-S1A-3"-N SIZE: MOTOR: C2-3220-LU-021 SECONDARY CRUSHER NO.1 LUBE SYSTEM 3220-OLL-1023-S1A-8"-N V V V D 4 F B A 3 2 1 5 6 8 E 7 C REV. APPROVED CHK. DES. REV. DATE REVISION DESCRIPTION CLIENT LEAD ENGINEER SCALE DRAWING NUMBER CHECK DESIGN CHECK DRAWING DESIGNED BY DRAWN BY APPROVAL DATE APPROVAL DATE APPROVED CHK. DES. REV. DATE REVISION DESCRIPTION REFERENCE DRAWING No. 1:100 0 1:200 5m 10m 0 5m 10m 15m 20m 1:500 10m 0 20m 30m 40m 50m 1:1000 0 100m 50m 1:20 0 0.5m 1m 1.5m 2m 0 1:25 0.5m 1m 1.5m 1:33 1/3 2.5m 2m 0 1m 2m 3m 0 1:50 1m 2m 3m 4m 5m CAD FILE NAME: P:0CAD000SPEM** MODEL UPDATED: DWG. FILE UPDATED: MANUAL CHANGES MADE: YES NO YES NO YES NO PROJECT MANAGER ENGINEERING MANAGER AREA PROJECTENGINEER REFERENCE DRAWINGS SAFETY SHARE: APPROVAL DATE CONTRACT NO. SAFETY SHARE : BA6CVA1.IGR NOTICE: THIS DRAWING HAS NOT BEEN PUBLISHED AND IS THE SOLE PROPERTY OF FLUOR AND IS LENT TO THE BORROWER FOR THEIR CONFIDENTIAL USE ONLY, AND IN CONSIDERATION OF THE LOAN OF THIS DRAWING, THE BORROWER PROMISES AND AGREES TO RETURN IT UPON REQUEST AND AGREES THAT IT WILL NOT BE REPRODUCED, COPIED LENT OR OTHERWISE DISPOSED OF DIRECTLY OR INDIRECTLY, NOR USED FOR ANY OTHER PURPOSE OTHER THAN WHICH IT IS FURNISHED. NONE Apr 2011 240K-C2- C2-3220-CR-011 SIZE: C2-3220-CR-011 SEC CRUSHER NO. 1
  • 42.
    FAULT OIL HEATERS (3) 3220-FA-083 3220 33714 TI 3220 33785 II 3220 33781 HS 3220 33723 LI L,P2 LL,P2 3220 33716 TE 3220 33721 ZI 3220 33784 XA 3220 33782 II 3220 33781 XA 3220 33726 TI A,B,C 3220 33710 ZI 3220 33781 II 3220 33711 TIECCENTRIC BUSHING 3220 33782 HS 3220 33703 LI 3220 33713 PI 3220 33716 TIT 3220 33785 HS 3220 33724 XA 3220 33715 TIT 3220 33725 PDI LUBE OIL FILTER 3220 33783 HS 3220 33705 PDI H,P2 3220 33712 TI 3220 33783 II 3220 33782 XA 3220 33783 XA 3220 33784 HS 3220 33722 ZI 3220 33784 II 3220 33704 TI H,P2 3220 33785 XA 3220 33716 TI H,P2 HH,P2 3220 33702 PI H,P2 3220 33715 TE 3220 33701 PI L,P2 3220 33715 TI H,P2 HH,P2 SECONDARY CRUSHER NO.2 A,B,C J/SP OP/CL J/SP VENDOR: P.O. NO.: MANUFACTURER: SEE VENDOR DWG NO.: FAULT H,P2 HH,P2 (6 HYDRAULIC HOSES BY VENDOR) J/SP SECONDARY CRUSHER NO.2 LUBE OIL COOLER BOWL POSITION H,P2 HH,P2 L,P2 FAULT SOCKET LINER TRAMP RELEASE PRESSURE 3220-FA-084 COUNTERSHAFT BEARING VENDOR: P.O. NO.: MANUFACTURER: SEE VENDOR DWG NO.: H,P2 HH,P2 SUPPLY OIL LUBE TANK OIL LEVEL HYDRAULIC OIL FAULT HYDRAULIC OIL TANK LEVEL H,P2 HH,P2 3220-PP-921 SECONDARY CRUSHER NO.2 LUBE SYSTEM FAULT VENDOR: P.O. NO.: MANUFACTURER: SEE VENDOR DWG NO.: VENDOR: P.O. NO.: MANUFACTURER: SEE VENDOR DWG NO.: OP/CL PUMP #1 DISCH. VALVE 3220-HY-021 H,P2 CLAMPING CIRCUIT PRESSURE DIRTY FILTER SECONDARY CRUSHER NO.2 HYDRAULIC POWER UNIT J/SP FAULT J/SP OP/CL PUMP #2 DISCH VALVE 3220-PP-922 C2-3220-LU-022 C2-3220-HY-024 AG KM LT ISSUED FOR CLIENT REVIEW 23-Dec-11 B RP ISSUED FOR COMBINED REVIEW 23-Jun-11 A 12/23/2011 K.MUNDY A.GUNSON T. OH L.TAMELIN 1/3/2012 1:37:54 PM WBS: 3220 B PIPING AND INSTRUMENTATION DIAGRAM SECONDARY CRUSHING 3200-25J-037 CRUSHER NO. 2 LUBE SYSTEMS C2-3220-CK-022 SIZE: MOTOR: C2-3220-CK-022 SECONDARY CRUSHER NO.2 LUBE OIL COOLER 3220-OLL-1027-S1A-3"-N ? SIZE: MOTOR: C2-3220-HY-024 SECONDARY CRUSHER NO.2 HYDRAULIC SET SYSTEM ? ? 3220-OLL-1026-S1A-8"-N ? SIZE: MOTOR: C2-3220-LU-022 SECONDARY CRUSHER NO.2 LUBE SYSTEM 3220-OLL-1028-S1A-3"-N D 4 F B A 3 2 1 5 6 8 E 7 C REV. APPROVED CHK. DES. REV. DATE REVISION DESCRIPTION CLIENT LEAD ENGINEER SCALE DRAWING NUMBER CHECK DESIGN CHECK DRAWING DESIGNED BY DRAWN BY APPROVAL DATE APPROVAL DATE APPROVED CHK. DES. REV. DATE REVISION DESCRIPTION REFERENCE DRAWING No. 1:100 0 1:200 5m 10m 0 5m 10m 15m 20m 1:500 10m 0 20m 30m 40m 50m 1:1000 0 100m 50m 1:20 0 0.5m 1m 1.5m 2m 0 1:25 0.5m 1m 1.5m 1:33 1/3 2.5m 2m 0 1m 2m 3m 0 1:50 1m 2m 3m 4m 5m CAD FILE NAME: P:0CAD000SPEM** MODEL UPDATED: DWG. FILE UPDATED: MANUAL CHANGES MADE: YES NO YES NO YES NO PROJECT MANAGER ENGINEERING MANAGER AREA PROJECTENGINEER REFERENCE DRAWINGS SAFETY SHARE: APPROVAL DATE CONTRACT NO. SAFETY SHARE : BA6CVA1.IGR NOTICE: THIS DRAWING HAS NOT BEEN PUBLISHED AND IS THE SOLE PROPERTY OF FLUOR AND IS LENT TO THE BORROWER FOR THEIR CONFIDENTIAL USE ONLY, AND IN CONSIDERATION OF THE LOAN OF THIS DRAWING, THE BORROWER PROMISES AND AGREES TO RETURN IT UPON REQUEST AND AGREES THAT IT WILL NOT BE REPRODUCED, COPIED LENT OR OTHERWISE DISPOSED OF DIRECTLY OR INDIRECTLY, NOR USED FOR ANY OTHER PURPOSE OTHER THAN WHICH IT IS FURNISHED. NONE Apr 2011 240K-C2- C2-3220-CR-012 SIZE: C2-3220-CR-012 SEC CRUSHER NO.2
  • 43.
    D 4 F B A 3 2 1 5 68 E 7 C REV. APPROVED CHK. DES. REV. DATE REVISION DESCRIPTION CLIENT LEAD ENGINEER SCALE DRAWING NUMBER CHECK DESIGN CHECK DRAWING DESIGNED BY DRAWN BY APPROVAL DATE APPROVAL DATE APPROVED CHK. DES. REV. DATE REVISION DESCRIPTION REFERENCE DRAWING No. 1:100 0 1:200 5m 10m 0 5m 10m 15m 20m 1:500 10m 0 20m 30m 40m 50m 1:1000 0 100m 50m 1:20 0 0.5m 1m 1.5m 2m 0 1:25 0.5m 1m 1.5m 1:33 1/3 2.5m 2m 0 1m 2m 3m 0 1:50 1m 2m 3m 4m 5m CAD FILE NAME: P:0CAD000SPEM** MODEL UPDATED: DWG. FILE UPDATED: MANUAL CHANGES MADE: YES NO YES NO YES NO PROJECT MANAGER ENGINEERING MANAGER AREA PROJECTENGINEER REFERENCE DRAWINGS SAFETY SHARE: APPROVAL DATE CONTRACT NO. SAFETY SHARE : BA6CVA1.IGR NOTICE: THIS DRAWING HAS NOT BEEN PUBLISHED AND IS THE SOLE PROPERTY OF FLUOR AND IS LENT TO THE BORROWER FOR THEIR CONFIDENTIAL USE ONLY, AND IN CONSIDERATION OF THE LOAN OF THIS DRAWING, THE BORROWER PROMISES AND AGREES TO RETURN IT UPON REQUEST AND AGREES THAT IT WILL NOT BE REPRODUCED, COPIED LENT OR OTHERWISE DISPOSED OF DIRECTLY OR INDIRECTLY, NOR USED FOR ANY OTHER PURPOSE OTHER THAN WHICH IT IS FURNISHED. NONE Apr 2011 240K-C2- AG KM LT ISSUED FOR CLIENT REVIEW 23-Dec-11 B NOT USED A 12/23/2011 K.MUNDY A.GUNSON T. OH L.TAMELIN 1/3/2012 8:22:56 AM WBS: 3220 B PIPING AND INSTRUMENTATION DIAGRAM SECONDARY CRUSHING 3200-25J-038 SECONDARY CRUSHER NO.7 A-D M 3220 03881 II 3220 03881 XA 3220 03881 HS 3220 03882 II 3220 03882 XA 3220 03882 HS 3220 03816 A LI 3220 03816 A LI 3220 03817 LSL 3220 03817 LAL 3220 03816 LE 3220 03816 LT 3220 03810 SE 3220 03806 A TE 3220 03806 A TI HH, P1 H, P2 3220 03807 A TE HH, P1 H, P2 3220 03807 A TI 3220 03805 ZSH 3220 03805 ZSHH 3220 03804 ZSH 3220 03804 ZSHH 3220 03805 ZAHH LHS, P1 3220 03804 ZAHH 3220 03802 HSS LHS 3220 03801 HSS 3220 03802 HSA 3220 03801 HSA 3220 03810 WE RHS 3220 03810 WIT 3220 03810 WI 3220 03808 A XS 3220 03808 B XS 3220 03808 XA P1 3220 03803 B SE FEEDER AFD DRIVE 3220 03807 B TI 3220 03806 B TE 3220 03807 B TE HH, P1 H, P2 3220 03803 B ST 3220 03806 B TI HH, P1 H, P2 3220 03803 B SI 3220 03803 SDI 3220 33881 HS J/SP 3220 03815 A LSH 3220 33881 II 3220 03814 LE 3220 03814 LT 3220 03815 A LAH 3220 03814 A LI 3220 03814 LIC 3220 33804 LSH 3220 33804 LAH P1 3220 33803 VE 3220 33803 VT A-D 3220 33803 VI HH, P1 H, P2 A-D 3220 03819 LSH 3220 03819 LAH 3220 03883 G TE 3220 03883 H TE 3220 03883 G TI BRG FRONT H,P2 HH,P1 3220 03883 H TI BRG REAR H,P2 HH,P1 3220 03883 HS J/SP 3220 03883 JI 3220 03883 II 3220 03883 XA 3220 33802 SE 3220 33802 SSL 3220 33802 SAL P2 ST/SP FAULT J/SP FAULT P1 RHS, P1 LHS A,B EXPERT SYSTEM H, P1 VENDOR: P.O.NO.: MANUFACTURER: P1 DUCTING BIN CONTINUED ON P&ID 3200-25J-035 3220-AP1322-C1A-2"-N C2-3220-ST-127 C2-3220-SL-043 C2-3220-ST-137 C2-3220-CR-023 C2-3220-ST-147 C2-3220-BL-026 C2-3220-DC-134 C2-3220-FA-134 C2-3220-FE-042 SIZE:700t LIVE MATERIAL: CAPACITY: TRIM:C1A C2-3220-BN-027 SEC CRUSHER NO. 7 SURGE BIN C2-3220-BN-027 H, P2 L, P2 RHS RHS LHS A,B A,B RHS A,B P1 P1 P1 3220 33801 LI L, P2 HH, P1 H, P2 DUCTING DUCTING 3220 33801 TI 3220 33801 PDI HH, P2 H, P1 H, P2 SIZE: C2-3220-DC-134 SEC CRUSHER NO. 7 SURGE BIN DUST COLLECTOR 2 V V SIZE: C2-3220-ST-127 SEC CRUSHER NO. 7 SURGE BIN RECLAIM FEEDER SKIRT SIZE: C2-3220-SL-043 SEC CRUSHER NO. 7 FEEDER 042 BELT SCALE SIZE: C2-3220-ST-137 SEC CRUSHER NO. 7 FEED CHUTE SIZE: C2-3220-ST-147 SEC CRUSHER NO. 7 DISCHARGE CHUTE 3220 33881 XA FAULT 3220 03805 ZAH 3220 03804 ZAH P2 P2 A,B A,B TEAR 3220 03803 A SI 3220 03803 A SE 3220 03803 A ST 3220 03815 A LE 3220 03815 B LSH 3220 03815 B LAH P1 3220 03815 B LE TO ATMOSPHERE V V V ES ES ES ES V V ES ES ES V V V ES V ES V ES V T1 LHS A,B LHS RHS V FAULT SIZE: MOTOR: C2-3220-BL-026 SEC CRUSHER NO. 7 DUST SEAL BLOWER SIZE: MOTOR: C2-3220-CR-023 SEC CRUSHER NO.7 SIZE: MOTOR: C2-3220-FE-042 SEC CRUSHER NO. 7 FEEDER SIZE: MOTOR: C2-3220-FA-134 SEC CRUSHER NO. 7 SURGE BIN DUST COLLECTOR 2 FAN V V V V RHS LHS V V 3220 03820 NS 3220 03820 NA V ES C2-3220-MD-053 SIZE: C2-3220-MD-053 FE-042 METAL DETECTOR V V V V V V V V A,B A,B M 3220 03884 II 3220 03884 XA 3220 03884 HS ST/SP FAULT C2-3220-DC-135 C2-3220-FA-135 TO ATMOSPHERE SIZE: MOTOR: C2-3220-FA-135 SEC CRUSHER NO. 7 SURGE BIN DUST COLLECTOR FAN 1 SIZE: C2-3220-DC-135 SEC CRUSHER NO. 7 SURGE BIN DUST COLLECTOR 1 3220-AP-1323-C1A-2"-N BIN CONTINUED ON P&ID 3200-25J-039 H,P1 PLANT AIR 3767 3200-25J-017 COARSE SCREENING O/S COARSE SCREENING O/S CONVEYOR NO.2, 3768 3200-25J-034 DUST DUST COLLECTOR, C2-3220-DC-151 3769 3200-25J-047 SEC CRUSHER PRODUCT SEC CRUSHER NO. 7 DISC. CONV. NO. 2, C2-3220-CV-026 3770 3200-25J-046 C2-3240-CV-025 3220 03809 ZS 3220 03809 ZI P1 VENDOR VENDOR ES VENDOR DUST DUST COLLECTOR, C2-3220-DC-152 4148 3200-25J-047 3220 03822 PDAH 3220 03823 PDAH
  • 44.
    D 4 F B A 3 2 1 5 68 E 7 C REV. APPROVED CHK. DES. REV. DATE REVISION DESCRIPTION CLIENT LEAD ENGINEER SCALE DRAWING NUMBER CHECK DESIGN CHECK DRAWING DESIGNED BY DRAWN BY APPROVAL DATE APPROVAL DATE APPROVED CHK. DES. REV. DATE REVISION DESCRIPTION REFERENCE DRAWING No. 1:100 0 1:200 5m 10m 0 5m 10m 15m 20m 1:500 10m 0 20m 30m 40m 50m 1:1000 0 100m 50m 1:20 0 0.5m 1m 1.5m 2m 0 1:25 0.5m 1m 1.5m 1:33 1/3 2.5m 2m 0 1m 2m 3m 0 1:50 1m 2m 3m 4m 5m CAD FILE NAME: P:0CAD000SPEM** MODEL UPDATED: DWG. FILE UPDATED: MANUAL CHANGES MADE: YES NO YES NO YES NO PROJECT MANAGER ENGINEERING MANAGER AREA PROJECTENGINEER REFERENCE DRAWINGS SAFETY SHARE: APPROVAL DATE CONTRACT NO. SAFETY SHARE : BA6CVA1.IGR NOTICE: THIS DRAWING HAS NOT BEEN PUBLISHED AND IS THE SOLE PROPERTY OF FLUOR AND IS LENT TO THE BORROWER FOR THEIR CONFIDENTIAL USE ONLY, AND IN CONSIDERATION OF THE LOAN OF THIS DRAWING, THE BORROWER PROMISES AND AGREES TO RETURN IT UPON REQUEST AND AGREES THAT IT WILL NOT BE REPRODUCED, COPIED LENT OR OTHERWISE DISPOSED OF DIRECTLY OR INDIRECTLY, NOR USED FOR ANY OTHER PURPOSE OTHER THAN WHICH IT IS FURNISHED. NONE Apr 2011 240K-C2- A-D M 3220 03981 II 3220 03981 XA 3220 03981 HS 3220 03982 II 3220 03982 XA 3220 03982 HS 3220 03916 A LI 3220 03916 A LI 3220 03917 LSL 3220 03917 LAL 3220 03916 LE 3220 03916 LT 3220 03910 SE 3220 03906 A TE 3220 03906 A TI HH, P1 H, P2 3220 03907 A TE HH, P1 H, P2 3220 03907 A TI 3220 03905 ZSH 3220 03905 ZSHH 3220 03904 ZSH 3220 03904 ZSHH 3220 03905 ZAHH LHS, P1 3220 03904 ZAHH 3220 03902 HSS LHS 3220 03901 HSS 3220 03902 HSA 3220 03902 HSA 3220 03910 WE RHS 3220 03910 WIT 3220 03910 WI 3220 03908 A XS 3220 03908 B XS 3220 03908 XA P1 3220 03903 B SE FEEDER AFD DRIVE 3220 03907 B TI 3220 03906 B TE 3220 03907 B TE HH, P1 H, P2 3220 03903 B ST 3220 03906 B TI HH, P1 H, P2 3220 03903 B SI 3220 03903 SDI 3220 33981 HS J/SP 3220 03915 A LSH 3220 33981 II 3220 03914 LE 3220 03914 LT 3220 03915 A LAH 3220 03914 A LI 3220 03914 LIC 3220 33904 LSH 3220 33904 LAH P1 3220 33903 VE 3220 33903 VT A-D 3220 33903 VI HH, P1 H, P2 A-D 3220 03919 LSH 3220 03919 LAH 3220 03983 G TE 3220 03983 H TE 3220 03983 G TI BRG FRONT H,P2 HH,P1 3220 03983 H TI BRG REAR H,P2 HH,P1 3220 03983 HS J/SP 3220 03983 JI 3220 03983 II 3220 03983 XA 3220 33902 SE 3220 33902 SSL 3220 33902 SAL P2 ST/SP FAULT J/SP FAULT P1 RHS, P1 LHS A,B EXPERT SYSTEM H, P1 VENDOR: P.O.NO.: MANUFACTURER: P1 DUCTING BIN CONTINUED ON P&ID 3200-25J-038 C2-3220-ST-128 C2-3220-SL-044 C2-3220-ST-138 C2-3220-CR-024 C2-3220-ST-148 C2-3220-BL-027 C2-3220-DC-136 C2-3220-FA-136 C2-3220-FE-043 SIZE:700 t LIVE MATERIAL: CAPACITY: TRIM:C1A C2-3220-BN-028 SEC CRUSHER NO. 8 SURGE BIN C2-3220-BN-028 H, P2 L, P2 RHS RHS LHS A,B A,B RHS A,B P1 P1 P1 3220 33901 LI L, P2 HH, P1 H, P2 DUCTING DUCTING 3220 33901 TI 3220 33901 PDI HH, P2 H, P1 H, P2 SIZE: C2-3220-DC-136 SEC CRUSHER NO. 8 SURGE BIN DUST COLLECTOR 1 V V SIZE: C2-3220-ST-128 SEC CRUSHER NO. 8 SURGE BIN RECLAIM FEEDER SKIRT SIZE: C2-3220-SL-044 SEC CRUSHER NO. 8 FEEDER 043 BELT SCALE SIZE: C2-3220-ST-138 SEC CRUSHER NO. 8 FEED CHUTE SIZE: C2-3220-ST-148 SEC CRUSHER NO. 8 DISCHARGE CHUTE 3220 33981 XA FAULT 3220 03905 ZAH 3220 03904 ZAH P2 P2 A,B A,B TEAR 3220 03903 A SI 3220 03903 A SE 3220 03903 A ST 3220 03915 A LE 3220 03915 B LSH 3220 03915 B LAH P1 3220 03915 B LE TO ATMOSPHERE V V V ES ES ES ES V V ES ES ES V V V ES V ES V ES V T1 LHS A,B LHS RHS V FAULT SIZE: MOTOR: C2-3220-BL-027 SEC CRUSHER NO. 8 DUST SEAL BLOWER SIZE: MOTOR: C2-3220-CR-024 SEC CRUSHER NO.8 SIZE: MOTOR: C2-3220-FE-043 SEC CRUSHER NO. 8 FEEDER SIZE: MOTOR: C2-3220-FA-136 SEC CRUSHER NO. 8 SURGE BIN DUST COLLECTOR 1 FAN V V V V RHS LHS V V 3220 03920 NS 3220 03920 NA ES C2-3220-MD-054 SIZE: C2-3220-MD-054 FE-043 METAL DETECTOR V V V V V V V V A,B A,B M 3220 03984 II 3220 03984 XA 3220 03984 HS ST/SP FAULT C2-3220-DC-137 C2-3220-FA-137 TO ATMOSPHERE SIZE: MOTOR: C2-3220-FA-137 SEC CRUSHER NO. 8 SURGE BIN DUST COLLECTOR 2 FAN SIZE: C2-3220-DC-137 SEC CRUSHER NO. 8 SURGE BIN DUST COLLECTOR 2 3220-AP-1325-C1A-2"-N H,P1 AG KM LT ISSUED FOR CLIENT REVIEW 23-Dec-11 B NOT USED A 12/23/2011 K.MUNDY A.GUNSON T. OH L.TAMELIN 1/3/2012 8:25:12 AM WBS: 3220 B PIPING AND INSTRUMENTATION DIAGRAM SECONDARY CRUSHING 3200-25J-039 SECONDARY CRUSHER NO. 8 PLANT AIR 3771 3200-25J-017 COARSE SCREENING O/S COARSE SCREENING O/S CONVEYOR NO.2, 3772 3200-25J-034 C2-3240-CV-025 DUST DUST COLLECTOR, C2-3220-DC-151 3773 3200-25J-047 SEC CRUSHER PRODUCT SEC CRUSHER NO. 8 DISC. CONV. NO.2, C2-3220-CV-026 3774 3200-25J-046 3220 03909 ZS 3220 03909 ZI P1 3220-AP-1324-C1A-2"-N VENDOR VENDOR ES DUST DUST COLLECTOR, C2-3220-DC-153 4150 3200-25J-047 VENDOR 3220 03922 PDAH 3220 03923 PDAH
  • 45.
    D 4 F B A 3 2 1 5 68 E 7 C REV. APPROVED CHK. DES. REV. DATE REVISION DESCRIPTION CLIENT LEAD ENGINEER SCALE DRAWING NUMBER CHECK DESIGN CHECK DRAWING DESIGNED BY DRAWN BY APPROVAL DATE APPROVAL DATE APPROVED CHK. DES. REV. DATE REVISION DESCRIPTION REFERENCE DRAWING No. 1:100 0 1:200 5m 10m 0 5m 10m 15m 20m 1:500 10m 0 20m 30m 40m 50m 1:1000 0 100m 50m 1:20 0 0.5m 1m 1.5m 2m 0 1:25 0.5m 1m 1.5m 1:33 1/3 2.5m 2m 0 1m 2m 3m 0 1:50 1m 2m 3m 4m 5m CAD FILE NAME: P:0CAD000SPEM** MODEL UPDATED: DWG. FILE UPDATED: MANUAL CHANGES MADE: YES NO YES NO YES NO PROJECT MANAGER ENGINEERING MANAGER AREA PROJECTENGINEER REFERENCE DRAWINGS SAFETY SHARE: APPROVAL DATE CONTRACT NO. SAFETY SHARE : BA6CVA1.IGR NOTICE: THIS DRAWING HAS NOT BEEN PUBLISHED AND IS THE SOLE PROPERTY OF FLUOR AND IS LENT TO THE BORROWER FOR THEIR CONFIDENTIAL USE ONLY, AND IN CONSIDERATION OF THE LOAN OF THIS DRAWING, THE BORROWER PROMISES AND AGREES TO RETURN IT UPON REQUEST AND AGREES THAT IT WILL NOT BE REPRODUCED, COPIED LENT OR OTHERWISE DISPOSED OF DIRECTLY OR INDIRECTLY, NOR USED FOR ANY OTHER PURPOSE OTHER THAN WHICH IT IS FURNISHED. NONE Apr 2011 240K-C2- AG KM LT ISSUED FOR CLIENT REVIEW 23-Dec-11 B NOT USED A 12/23/2011 K.MUNDY A.GUNSON T. OH L.TAMELIN 12/23/2011 11:43:12 AM WBS: 3220 B PIPING AND INSTRUMENTATION DIAGRAM SECONDARY CRUSHING 3200-25J-040 CRUSHER NO. 7 AND NO. 8 LUBE SYSTEMS SOCKET LINER ECCENTRIC BUSHING 3220 34084 XA H,P2 HH,P2 3220 34084 II 3220 34084 HS FAULT J/SP 3220 34083 XA 3220 34010 ZI 3220 34083 II 3220 34014 TI 3220 34083 HS 3220 34013 PI 3220 34012 TI 3220 34011 TI (6 HYDRAULIC HOSES BY VENDOR) FAULT J/SP 3220 34082 XA SIZE: MOTOR: C2-3220-CK-027 SECONDARY CRUSHER NO.7 LUBE OIL COOLER 3220 34082 II C2-3220-CK-027 3220 34082 HS FAULT J/SP 3220 34081 XA 3220 34081 II 3220 34081 HS VENDOR LOAD CONTROL PANEL OIL HEATERS (3) VENDOR PLC A,B,C DIRTY FILTER FAULT HYDRAULIC OIL V HYDRAULIC OIL TANK LEVEL V TRAMP RELEASE PRESSURE CLAMPING CIRCUIT PRESSURE V H,P2 3220-OLL-1048-S1A-8"-N H,P2 SIZE: MOTOR: C2-3220-LU-027 SECONDARY CRUSHER NO.7 LUBE SYSTEM L,P2 H,P2 HH,P2 3220-OLL-1050-S1A-3"-N H,P2 3220 34015 TI V L,P2 3220 34015 TIT SIZE: MOTOR: C2-3220-HY-029 SECONDARY CRUSHER NO.7 HYDRAULIC SET SYSTEM 3220 34001 PI 3220 34015 TE 3220-OLL-1049-S1A-3"-N 3220 34002 PI OP/CL PUMP #2 DISCH VALVE 3220 34003 LI OP/CL PUMP #1 DISCH. VALVE 3220 34004 TI LUBE TANK OIL LEVEL 3220 34005 PDI L,P2 LL,P2 H,P2 HH,P2 H,P2 H,P2 HH,P2 H,P2 HH,P2 LUBE OIL FILTER BOWL POSITION 3220-PP-921 3220-PP-922 3220-FA-082 3220-FA-081 3220-HY-021 SECONDARY CRUSHER NO.7 LUBE OIL COOLER SECONDARY CRUSHER NO.7 3220 34024 XA SECONDARY CRUSHER NO.7 LUBE SYSTEM 3220 34023 LI VENDOR: P.O. NO.: MANUFACTURER: SEE VENDOR DWG NO.: 3220 34022 ZI VENDOR: P.O. NO.: MANUFACTURER: SEE VENDOR DWG NO.: 3220 34021 ZI VENDOR: P.O. NO.: MANUFACTURER: SEE VENDOR DWG NO.: 3220 34025 PDI VENDOR: P.O. NO.: MANUFACTURER: SEE VENDOR DWG NO.: 3220 34026 TI SECONDARY CRUSHER NO.7 HYDRAULIC POWER UNIT H,P2 HH,P2 C2-3220-LU-027 FAULT J/SP 3220 34016 TI 3220 34016 TIT 3220 34085 XA 3220 34016 TE 3220 34085 II 3220 34085 HS OP/CL COUNTERSHAFT BEARING FAULT SUPPLY OIL J/SP SOCKET LINER ECCENTRIC BUSHING 3220 34584 XA H,P2 HH,P2 3220 34584 II 3220 34584 HS FAULT J/SP 3220 34583 XA 3220 34510 ZI 3220 34583 II 3220 34514 TI 3220 34583 HS 3220 34513 PI 3220 34512 TI 3220 34511 TI (6 HYDRAULIC HOSES BY VENDOR) FAULT J/SP 3220 34582 XA SIZE: MOTOR: C2-3220-CK-028 SECONDARY CRUSHER NO.8 LUBE OIL COOLER 3220 34582 II C2-3220-CK-028 3220 34582 HS FAULT J/SP 3220 34581 XA 3220 34581 II 3220 34581 HS VENDOR LOAD CONTROL PANEL OIL HEATERS (3) VENDOR PLC A,B,C DIRTY FILTER FAULT HYDRAULIC OIL V HYDRAULIC OIL TANK LEVEL V TRAMP RELEASE PRESSURE CLAMPING CIRCUIT PRESSURE V H,P2 3220-OLL-1051-S1A-8"-N H,P2 SIZE: MOTOR: C2-3220-LU-028 SECONDARY CRUSHER LUBE NO.8 SYSTEM L,P2 H,P2 HH,P2 3220-OLL-1053-S1A-3"-N H,P2 3220 34515 TI V L,P2 3220 34515 TIT SIZE: MOTOR: C2-3220-HY-030 SECONDARY CRUSHER NO.8 HYDRAULIC SET SYSTEM 3220 34501 PI 3220 34515 TE 3220-OLL-1052-S1A-3"-N 3220 34502 PI OP/CL PUMP #2 DISCH VALVE 3220 34503 LI OP/CL PUMP #1 DISCH. VALVE 3220 34504 TI LUBE TANK OIL LEVEL 3220 34505 PDI L,P2 LL,P2 H,P2 HH,P2 H,P2 H,P2 HH,P2 H,P2 HH,P2 LUBE OIL FILTER BOWL POSITION 3220-PP-921 3220-PP-922 3220-FA-082 3220-FA-081 3220-HY-021 SECONDARY CRUSHER NO.8 LUBE OIL COOLER SECONDARY CRUSHER NO.8 3220 34524 XA SECONDARY CRUSHER NO.8 LUBE SYSTEM 3220 34523 LI VENDOR: P.O. NO.: MANUFACTURER: SEE VENDOR DWG NO.: 3220 34522 ZI VENDOR: P.O. NO.: MANUFACTURER: SEE VENDOR DWG NO.: 3220 34521 ZI VENDOR: P.O. NO.: MANUFACTURER: SEE VENDOR DWG NO.: 3220 34525 PDI VENDOR: P.O. NO.: MANUFACTURER: SEE VENDOR DWG NO.: 3220 34526 TI HYDRAULIC POWER UNIT H,P2 HH,P2 C2-3220-LU-028 C2-3220-HY-030 FAULT J/SP 3220 34516 TI 3220 34516 TIT 3220 34585 XA 3220 34516 TE 3220 34585 II 3220 34585 HS OP/CL COUNTERSHAFT BEARING FAULT SUPPLY OIL J/SP SECONDARY CRUSHER NO.8 C2-3220-HY-029 C2-3220-CR-023 SIZE: C2-3220-CR-023 SEC CRUSHER NO.7 SIZE: C2-3220-CR-024 SEC CRUSHER NO.8 C2-3220-CR-024
  • 46.
    D 4 F B A 3 2 1 5 68 E 7 C REV. APPROVED CHK. DES. REV. DATE REVISION DESCRIPTION CLIENT LEAD ENGINEER SCALE DRAWING NUMBER CHECK DESIGN CHECK DRAWING DESIGNED BY DRAWN BY APPROVAL DATE APPROVAL DATE APPROVED CHK. DES. REV. DATE REVISION DESCRIPTION REFERENCE DRAWING No. 1:100 0 1:200 5m 10m 0 5m 10m 15m 20m 1:500 10m 0 20m 30m 40m 50m 1:1000 0 100m 50m 1:20 0 0.5m 1m 1.5m 2m 0 1:25 0.5m 1m 1.5m 1:33 1/3 2.5m 2m 0 1m 2m 3m 0 1:50 1m 2m 3m 4m 5m CAD FILE NAME: P:0CAD000SPEM** MODEL UPDATED: DWG. FILE UPDATED: MANUAL CHANGES MADE: YES NO YES NO YES NO PROJECT MANAGER ENGINEERING MANAGER AREA PROJECTENGINEER REFERENCE DRAWINGS SAFETY SHARE: APPROVAL DATE CONTRACT NO. SAFETY SHARE : BA6CVA1.IGR NOTICE: THIS DRAWING HAS NOT BEEN PUBLISHED AND IS THE SOLE PROPERTY OF FLUOR AND IS LENT TO THE BORROWER FOR THEIR CONFIDENTIAL USE ONLY, AND IN CONSIDERATION OF THE LOAN OF THIS DRAWING, THE BORROWER PROMISES AND AGREES TO RETURN IT UPON REQUEST AND AGREES THAT IT WILL NOT BE REPRODUCED, COPIED LENT OR OTHERWISE DISPOSED OF DIRECTLY OR INDIRECTLY, NOR USED FOR ANY OTHER PURPOSE OTHER THAN WHICH IT IS FURNISHED. NONE Apr 2011 240K-C2- 3220 34105 PDI 3220 34104 TI 3220 34103 LI 3220 34102 PI 3220 34101 PI L,P2 H,P2 L,P2 H,P2 H,P2 CLAMPING CIRCUIT PRESSURE TRAMP RELEASE PRESSURE HYDRAULIC OIL TANK LEVEL HYDRAULIC OIL DIRTY FILTER (6 HYDRAULIC HOSES BY VENDOR) 3220 34111 TI 3220 34112 TI 3220 34113 PI 3220 34114 TI 3220 34110 ZI H,P2 HH,P2 ECCENTRIC BUSHING SOCKET LINER SUPPLY OIL COUNTERSHAFT BEARING OP/CL 3220 34116 TE 3220 34116 TIT 3220 34116 TI H,P2 HH,P2 3220 34126 TI 3220 34125 PDI 3220 34121 ZI 3220 34122 ZI 3220 34123 LI 3220 34124 XA H,P2 L,P2 LL,P2 LUBE TANK OIL LEVEL OP/CL PUMP #1 DISCH. VALVE OP/CL PUMP #2 DISCH VALVE 3220 34115 TE 3220 34115 TIT 3220 34115 TI H,P2 HH,P2 3220 34181 HS 3220 34181 II 3220 34181 XA J/SP FAULT 3220 34182 HS 3220 34182 II 3220 34182 XA J/SP FAULT 3220 34183 HS 3220 34183 II 3220 34183 XA J/SP FAULT 3220 34184 HS 3220 34184 II 3220 34184 XA J/SP FAULT 3220 34185 HS 3220 34185 II 3220 34185 XA J/SP FAULT C2-3220-HY-025 C2-3220-LU-023 SECONDARY CRUSHER NO.3 HYDRAULIC POWER UNIT VENDOR: P.O. NO.: MANUFACTURER: SEE VENDOR DWG NO.: VENDOR: P.O. NO.: MANUFACTURER: SEE VENDOR DWG NO.: VENDOR: P.O. NO.: MANUFACTURER: SEE VENDOR DWG NO.: VENDOR: P.O. NO.: MANUFACTURER: SEE VENDOR DWG NO.: SECONDARY CRUSHER NO.3 LUBE SYSTEM SECONDARY CRUSHER NO.3 SECONDARY CRUSHER NO.3 LUBE OIL COOLER 3220-HY-021 3220-FA-085 3220-FA-086 3220-PP-922 3220-PP-921 BOWL POSITION LUBE OIL FILTER H,P2 HH,P2 H,P2 HH,P2 H,P2 HH,P2 3220-OLL-1030-S1A-3"-N SIZE: MOTOR: C2-3220-HY-025 SECONDARY CRUSHER NO.3 HYDRAULIC SET SYSTEM ? 3220-OLL-1029-S1A-8"-N ? ? SIZE: MOTOR: C2-3220-LU-023 SECONDARY CRUSHER NO.3 LUBE SYSTEM 3220-OLL-1031-S1A-3"-N ? AG KM LT ISSUED FOR CLIENT REVIEW 23-Dec-11 B RP ISSUED FOR COMBINED REVIEW 23-Jun-11 A 12/23/2011 K.MUNDY A.GUNSON T. OH L.TAMELIN 12/23/2011 2:48:20 PM WBS: 3220 B PIPING AND INSTRUMENTATION DIAGRAM SECONDARY CRUSHING 3200-25J-041 CRUSHER NO. 3 LUBE SYSTEMS OIL HEATERS (3) FAULT A,B,C C2-3220-CK-023 SIZE: MOTOR: C2-3220-CK-023 SECONDARY CRUSHER NO.3 OIL COOLER C2-3220-CR-013 SIZE:MP 1250 C2-3220-CR-013 SEC CRUSHER NO.3
  • 47.
    D 4 F B A 3 2 1 5 68 E 7 C REV. APPROVED CHK. DES. REV. DATE REVISION DESCRIPTION CLIENT LEAD ENGINEER SCALE DRAWING NUMBER CHECK DESIGN CHECK DRAWING DESIGNED BY DRAWN BY APPROVAL DATE APPROVAL DATE APPROVED CHK. DES. REV. DATE REVISION DESCRIPTION REFERENCE DRAWING No. 1:100 0 1:200 5m 10m 0 5m 10m 15m 20m 1:500 10m 0 20m 30m 40m 50m 1:1000 0 100m 50m 1:20 0 0.5m 1m 1.5m 2m 0 1:25 0.5m 1m 1.5m 1:33 1/3 2.5m 2m 0 1m 2m 3m 0 1:50 1m 2m 3m 4m 5m CAD FILE NAME: P:0CAD000SPEM** MODEL UPDATED: DWG. FILE UPDATED: MANUAL CHANGES MADE: YES NO YES NO YES NO PROJECT MANAGER ENGINEERING MANAGER AREA PROJECTENGINEER REFERENCE DRAWINGS SAFETY SHARE: APPROVAL DATE CONTRACT NO. SAFETY SHARE : BA6CVA1.IGR NOTICE: THIS DRAWING HAS NOT BEEN PUBLISHED AND IS THE SOLE PROPERTY OF FLUOR AND IS LENT TO THE BORROWER FOR THEIR CONFIDENTIAL USE ONLY, AND IN CONSIDERATION OF THE LOAN OF THIS DRAWING, THE BORROWER PROMISES AND AGREES TO RETURN IT UPON REQUEST AND AGREES THAT IT WILL NOT BE REPRODUCED, COPIED LENT OR OTHERWISE DISPOSED OF DIRECTLY OR INDIRECTLY, NOR USED FOR ANY OTHER PURPOSE OTHER THAN WHICH IT IS FURNISHED. NONE Apr 2011 240K-C2- 3220 34205 PDI 3220 34204 TI 3220 34203 LI 3220 34202 PI 3220 34201 PI L,P2 H,P2 L,P2 H,P2 H,P2 CLAMPING CIRCUIT PRESSURE TRAMP RELEASE PRESSURE HYDRAULIC OIL TANK LEVEL HYDRAULIC OIL DIRTY FILTER (6 HYDRAULIC HOSES BY VENDOR) 3220 34211 TI 3220 34212 TI 3220 34213 PI 3220 34214 TI 3220 34210 ZI H,P2 HH,P2 ECCENTRIC BUSHING SOCKET LINER SUPPLY OIL COUNTERSHAFT BEARING OP/CL 3220 34216 TE 3220 34216 TIT 3220 34216 TI H,P2 HH,P2 3220 34226 TI 3220 34225 PDI 3220 34221 ZI 3220 34222 ZI 3220 34223 LI 3220 34224 XA H,P2 L,P2 LL,P2 LUBE TANK OIL LEVEL OP/CL PUMP #1 DISCH. VALVE OP/CL PUMP #2 DISCH VALVE 3220 34215 TE 3220 34215 TIT 3220 34215 TI H,P2 HH,P2 3220 34281 HS 3220 34281 II 3220 34281 XA J/SP FAULT 3220 34282 HS 3220 34282 II 3220 34282 XA J/SP FAULT 3220 34283 HS 3220 34283 II 3220 34283 XA J/SP FAULT 3220 34284 HS 3220 34284 II 3220 34284 XA J/SP FAULT 3220 34285 HS 3220 34285 II 3220 34285 XA J/SP FAULT C2-3220-HY-026 C2-3220-LU-024 SECONDARY CRUSHER NO.4 HYDRAULIC POWER UNIT VENDOR: P.O. NO.: MANUFACTURER: SEE VENDOR DWG NO.: VENDOR: P.O. NO.: MANUFACTURER: SEE VENDOR DWG NO.: VENDOR: P.O. NO.: MANUFACTURER: SEE VENDOR DWG NO.: VENDOR: P.O. NO.: MANUFACTURER: SEE VENDOR DWG NO.: SECONDARY CRUSHER NO.4 LUBE SYSTEM SECONDARY CRUSHER NO.4 SECONDARY CRUSHER NO.4 LUBE OIL COOLER 3220-HY-021 3220-FA-087 3220-FA-088 3220-PP-922 3220-PP-921 BOWL POSITION LUBE OIL FILTER H,P2 HH,P2 H,P2 HH,P2 H,P2 HH,P2 3220-OLL-1034-S1A-3"-N V 3220-OLL-1033-S1A-3"-N SIZE: MOTOR: C2-3220-HY-026 SECONDARY CRUSHER NO.4 HYDRAULIC SET SYSTEM 3220-OLL-1032-S1A-8"-N V V V SIZE: MOTOR: C2-3220-LU-024 SECONDARY CRUSHER NO.4 LUBE SYSTEM AG KM LT ISSUED FOR CLIENT REVIEW 23-Dec-11 B RP ISSUED FOR COMBINED REVIEW 23-Jun-11 A 12/23/2011 K.MUNDY A.GUNSON T. OH L.TAMELIN 12/23/2011 12:17:25 PM WBS: 3220 B PIPING AND INSTRUMENTATION DIAGRAM SECONDARY CRUSHING 3200-25J-042 CRUSHER NO. 4 LUBE SYSTEMS FAULT A,B,C OIL HEATERS (3) C2-3220-CK-024 SIZE: MOTOR: C2-3220-CK-024 SECONDARY CRUSHER NO.4 LUBE OIL COOLER C2-3220-CR-014 SIZE: C2-3220-CR-014 SECONDARY CRUSHER NO.4
  • 48.
    D 4 F B A 3 2 1 5 68 E 7 C REV. APPROVED CHK. DES. REV. DATE REVISION DESCRIPTION CLIENT LEAD ENGINEER SCALE DRAWING NUMBER CHECK DESIGN CHECK DRAWING DESIGNED BY DRAWN BY APPROVAL DATE APPROVAL DATE APPROVED CHK. DES. REV. DATE REVISION DESCRIPTION REFERENCE DRAWING No. 1:100 0 1:200 5m 10m 0 5m 10m 15m 20m 1:500 10m 0 20m 30m 40m 50m 1:1000 0 100m 50m 1:20 0 0.5m 1m 1.5m 2m 0 1:25 0.5m 1m 1.5m 1:33 1/3 2.5m 2m 0 1m 2m 3m 0 1:50 1m 2m 3m 4m 5m CAD FILE NAME: P:0CAD000SPEM** MODEL UPDATED: DWG. FILE UPDATED: MANUAL CHANGES MADE: YES NO YES NO YES NO PROJECT MANAGER ENGINEERING MANAGER AREA PROJECTENGINEER REFERENCE DRAWINGS SAFETY SHARE: APPROVAL DATE CONTRACT NO. SAFETY SHARE : BA6CVA1.IGR NOTICE: THIS DRAWING HAS NOT BEEN PUBLISHED AND IS THE SOLE PROPERTY OF FLUOR AND IS LENT TO THE BORROWER FOR THEIR CONFIDENTIAL USE ONLY, AND IN CONSIDERATION OF THE LOAN OF THIS DRAWING, THE BORROWER PROMISES AND AGREES TO RETURN IT UPON REQUEST AND AGREES THAT IT WILL NOT BE REPRODUCED, COPIED LENT OR OTHERWISE DISPOSED OF DIRECTLY OR INDIRECTLY, NOR USED FOR ANY OTHER PURPOSE OTHER THAN WHICH IT IS FURNISHED. NONE Apr 2011 240K-C2- 3220 34305 PDI 3220 34304 TI 3220 34303 LI 3220 34302 PI 3220 34301 PI L,P2 H,P2 L,P2 H,P2 H,P2 CLAMPING CIRCUIT PRESSURE TRAMP RELEASE PRESSURE HYDRAULIC OIL TANK LEVEL HYDRAULIC OIL DIRTY FILTER (6 HYDRAULIC HOSES BY VENDOR) 3220 34311 TI 3220 34312 TI 3220 34313 PI 3220 34314 TI 3220 34310 ZI H,P2 HH,P2 ECCENTRIC BUSHING SOCKET LINER SUPPLY OIL COUNTERSHAFT BEARING OP/CL 3220 34316 TE 3220 34316 TIT 3220 34316 TI H,P2 HH,P2 3220 34326 TI 3220 34325 PDI 3220 34321 ZI 3220 34322 ZI 3220 34323 LI 3220 34324 XA H,P2 L,P2 LL,P2 LUBE TANK OIL LEVEL OP/CL PUMP #1 DISCH. VALVE OP/CL PUMP #2 DISCH VALVE 3220 34315 TE 3220 34315 TIT 3220 34315 TI H,P2 HH,P2 3220 34381 HS 3220 34381 II 3220 34381 XA J/SP FAULT 3220 34382 HS 3220 34382 II 3220 34382 XA J/SP FAULT 3220 34383 HS 3220 34383 II 3220 34383 XA J/SP FAULT 3220 34384 HS 3220 34384 II 3220 34384 XA J/SP FAULT 3220 34385 HS 3220 34385 II 3220 34385 XA J/SP FAULT C2-3220-HY-027 C2-3220-LU-025 SECONDARY CRUSHER NO.5 HYDRAULIC POWER UNIT VENDOR: P.O. NO.: MANUFACTURER: SEE VENDOR DWG NO.: VENDOR: P.O. NO.: MANUFACTURER: SEE VENDOR DWG NO.: VENDOR: P.O. NO.: MANUFACTURER: SEE VENDOR DWG NO.: VENDOR: P.O. NO.: MANUFACTURER: SEE VENDOR DWG NO.: SECONDARY CRUSHER NO.5 LUBE SYSTEM SECONDARY CRUSHER NO.5 SECONDARY CRUSHER NO.5 LUBE OIL COOLER 3220-HY-021 3220-FA-089 3220-FA-090 3220-PP-922 3220-PP-921 BOWL POSITION LUBE OIL FILTER H,P2 HH,P2 H,P2 HH,P2 H,P2 HH,P2 SIZE: MOTOR: C2-3220-LU-025 SECONDARY CRUSHER NO. 5LUBE SYSTEM 3220-OLL-1037-S1A-3"-N V V V SIZE: MOTOR: C2-3220-HY-027 SECONDARY CRUSHER NO.5 HYDRAULIC SET SYSTEM 3220-OLL-1036-S1A-3"-N V 3220-OLL-1035-S1A-8"-N AG KM LT ISSUED FOR CLIENT REVIEW 23-Dec-11 B RP ISSUED FOR COMBINED REVIEW 23-Jun-11 A 12/23/2011 K.MUNDY A.GUNSON T. OH L.TAMELIN 12/23/2011 1:08:33 PM WBS: 3220 B PIPING AND INSTRUMENTATION DIAGRAM SECONDARY CRUSHING 3200-25J-043 CRUSHER NO. 5 LUBE SYSTEMS FAULT OIL HEATERS (3) A,B,C C2-3220-CK-025 SIZE: MOTOR: C2-3220-CK-025 SECONDARY CRUSHER NO.5 LUBE OIL COOLER SIZE: C2-3220-CR-021 SEC CRUSHER NO.5 C2-3220-CR-021
  • 49.
    3220-FA-091 3220 34484 HS 3220 34403 LI 3220 34423 LI L,P2 LL,P2 3220 34412 TI 3220 34411 TI ECCENTRIC BUSHING 3220 34422 ZI 3220 34482 II 3220 34481 II 3220 34482 XA 3220 34421 ZI 3220 34484 II 3220 34484 XA 3220 34481 HS 3220 34483 HS 3220 34425 PDI LUBE OILFILTER 3220 34416 TI H,P2 HH,P2 3220 34405 PDI H,P2 3220 34416 TIT 3220 34481 XA 3220 34426 TI 3220 34404 TI H,P2 3220 34410 ZI 3220 34424 XA FAULT 3220 34485 II 3220 34416 TE 3220 34485 HS 3220 34483 XA 3220 34483 II 3220 34482 HS 3220 34402 PI H,P2 3220 34485 XA 3220 34413 PI 3220 34415 TE 3220 34415 TI H,P2 HH,P2 3220 34414 TI 3220 34415 TIT 3220 34401 PI L,P2 OIL HEATERS (3) A,B,C COUNTERSHAFT BEARING DIRTY FILTER FAULT HYDRAULIC OIL BOWL POSITION LUBE TANK OIL LEVEL SUPPLY OIL VENDOR: P.O. NO.: MANUFACTURER: SEE VENDOR DWG NO.: J/SP J/SP H,P2 HH,P2 H,P2 OP/CL PUMP #2 DISCH VALVE L,P2 3220-HY-021 FAULT H,P2 HH,P2 VENDOR: P.O. NO.: MANUFACTURER: SEE VENDOR DWG NO.: SECONDARY CRUSHER NO.6 HYDRAULIC POWER UNIT TRAMP RELEASE PRESSURE J/SP VENDOR: P.O. NO.: MANUFACTURER: SEE VENDOR DWG NO.: CLAMPING CIRCUIT PRESSURE SECONDARY CRUSHER NO.6 FAULT SECONDARY CRUSHER NO.6 LUBE SYSTEM SECONDARY CRUSHER NO.6 LUBE OIL COOLER FAULT FAULT VENDOR: P.O. NO.: MANUFACTURER: SEE VENDOR DWG NO.: J/SP 3220-FA-092 3220-PP-921 H,P2 HH,P2 OP/CL PUMP #1 DISCH. VALVE 3220-PP-922 SOCKET LINER H,P2 HH,P2 J/SP OP/CL (6 HYDRAULIC HOSES BY VENDOR) HYDRAULIC OIL TANK LEVEL C2-3220-LU-026 AG KM LT ISSUED FOR CLIENT REVIEW 23-Dec-11 B RP ISSUED FOR COMBINED REVIEW 23-Jun-11 A 12/23/2011 K.MUNDY A.GUNSON T. OH L.TAMELIN. 12/23/2011 2:50:16 PM WBS: 3220 B PIPING AND INSTRUMENTATION DIAGRAM SECONDARY CRUSHING 3200-25J-044 CRUSHER NO. 6 LUBE SYSTEMS C2-3220-HY-028 C2-3220-CK-026 SIZE: MOTOR: C2-3220-CK-026 SECONDARY CRUSHER NO.6 LUBE OIL COOLER 3220-OLL-1039-S1A-3"-N SIZE: MOTOR: C2-3220-LU-026 SECONDARY CRUSHER NO.6 LUBE SYSTEM 3220-OLL-1038-S1A-8"-N 3220-OLL-1040-S1A-3"-N V V SIZE: MOTOR: C2-3220-HY-028 SECONDARY CRUSHER NO.6 HYDRAULIC SET SYSTEM V V D 4 F B A 3 2 1 5 6 8 E 7 C REV. APPROVED CHK. DES. REV. DATE REVISION DESCRIPTION CLIENT LEAD ENGINEER SCALE DRAWING NUMBER CHECK DESIGN CHECK DRAWING DESIGNED BY DRAWN BY APPROVAL DATE APPROVAL DATE APPROVED CHK. DES. REV. DATE REVISION DESCRIPTION REFERENCE DRAWING No. 1:100 0 1:200 5m 10m 0 5m 10m 15m 20m 1:500 10m 0 20m 30m 40m 50m 1:1000 0 100m 50m 1:20 0 0.5m 1m 1.5m 2m 0 1:25 0.5m 1m 1.5m 1:33 1/3 2.5m 2m 0 1m 2m 3m 0 1:50 1m 2m 3m 4m 5m CAD FILE NAME: P:0CAD000SPEM** MODEL UPDATED: DWG. FILE UPDATED: MANUAL CHANGES MADE: YES NO YES NO YES NO PROJECT MANAGER ENGINEERING MANAGER AREA PROJECTENGINEER REFERENCE DRAWINGS SAFETY SHARE: APPROVAL DATE CONTRACT NO. SAFETY SHARE : BA6CVA1.IGR NOTICE: THIS DRAWING HAS NOT BEEN PUBLISHED AND IS THE SOLE PROPERTY OF FLUOR AND IS LENT TO THE BORROWER FOR THEIR CONFIDENTIAL USE ONLY, AND IN CONSIDERATION OF THE LOAN OF THIS DRAWING, THE BORROWER PROMISES AND AGREES TO RETURN IT UPON REQUEST AND AGREES THAT IT WILL NOT BE REPRODUCED, COPIED LENT OR OTHERWISE DISPOSED OF DIRECTLY OR INDIRECTLY, NOR USED FOR ANY OTHER PURPOSE OTHER THAN WHICH IT IS FURNISHED. NONE Apr 2011 240K-C2- C2-3220-CR-022 SIZE: MOTOR: C2-3220-CR-022 SECONDARY CRUSHER NO.6
  • 50.
    T5 T8 T1 GEAR REDUCER GEAR REDUCER GEAR REDUCER LHS VENDOR 3220 04582 HS 3220 04581 HS 3220 04580 HS 3220 04580 II 3220 04580 XA 3220 04551 VE 3220 04551 VI 3220 04552 LA L, P2 3220 04533 TI H,P2 HH, P1 H, P2 HH, P1 L, P2 3220 04531 VE 3220 04551 VT 3220 04531 VI 3220 04552 LSL 3220 04532 LA 04553 TE 3220 04553 TI H, P2 HH, P1 3220 04532 LE 04543 TE 3220 04543 TI 3220 04542 LA 3220 04541 VI 3220 04542 LE 3220 04541 VT 3220 04552 LE 04533 TE 3220 04542 LSL 3220 04518 FIT 3220 04518 FIC M 3220 H TI BRG FRONT H, P2 HH, P1 3220 G TI 3220 H TE 3220 G TE 3220 04512 D ZS 3220 04507 TI H, P2 HH, P1 LHS 3220 04501 HSA A-H 3220 04501 HSS 3220 04505 ZSHH 3210 04513 NS 3210 04513 NA P1 3220 04512 B ZA 3220 04582 H TI BRG REAR H, P2 HH, P1 3220 04507 TE 3220 04515 A LE 3220 04581 H TI BRG REAR H, P2 HH, P1 3220 04522 ZSHH 3220 04521 SSL 3220 04580 H TE 3220 04503 B SE 3220 04522 ZAHH 3220 04503 A SI 3220 04508 XA A,B 3220 04501 HSS LHS 3220 04505 ZAHH P1 A,B RHS 3220 04502 HSS RHS 3220 04504 ZAHH P1 A,B LHS 3220 04505 ZAH 3220 04504 ZAH 3220 04585 HS J/SP 3220 04513 XE 3220 04513 XE 3220 04513 XI 3220 04513 XY 3220 04504 ZSHH 3220 04503 A ST 3220 04582 G TE 3220 04512 D ZA 3220 04512 A ZS 3220 04512 A ZA 3220 04513 XY B 3220 04580 G TI 3220 04515 B LAH P1 3220 04516 LI H, P1 3220 04504 ZSH 3220 04512 B ZS P2 3220 04505 ZSHH 3220 04521 SAL P1 3220 04505 ZAHH 3220 04508 B XS 3220 04504 ZAHH P1 3220 04582 II 3220 04582 H TE 3220 04516 LE 3220 04503 A SE 3220 04582 XA 3220 04581 H TE 3220 04585 XA 3220 04510 WIT 3220 04581 II 3220 04505 ZSH RHS 3220 04521 SE 3220 04582 G TI 3220 04506 TI 3220 04584 HS 3220 04504 ZSHH 3220 04504 ZAH P2 LHS 3220 04515 B LE 3220 04510 WI L, P2 3220 04522 ZAH P2 P2 3220 04502 HSA 3220 04512 C ZS 3220 04583 XA FAULT 3220 04510 SE 3220 04505 ZAH 3220 04505 ZSH RHS 3220 04508 A XS 3220 04516 LIT 3220 04532 LSL 3220 04531 VT 3220 04515 B LSH 3220 04581 G TE 3220 04504 ZSH LHS 3220 04503 B SI 3220 04583 HS (J) JF/JR SP 3220 04512 C ZA 3220 04515 A LAH P1 3220 04515 A LSH 3220 04541 VE 3220 04522 ZSH 3220 04501 HSA P1 LHS 3220 04581 G TI 3220 04580 G TE 3220 04584 II 3220 04581 XA 3220 04502 HSA RHS P1 3220 04506 TE 3220 04503 B ST 3220 04510 WE 3220 04583 II 3220 04503 SDI 3220 04502 HSS 3220 04585 II 3220 04580 H TI BRG REAR H, P2 HH, P1 3220 04584 XA FAULT WRIM DUST DUST COLLECTOR , C2-3220-DC-122 3458 3200-25J-047 DUST DUST COLLECTOR, C2-3220-DC-121 3459 3200-25J-047 DUST DUST COLLECTOR , C2-3220-DC-031 3460 3200-25J-047 DUST DUST COLLECTOR C2-3220-DC-123 3457 3200-25J-047 SEC. CRUSHER PRODUCT SECONDARY CRUSHER NO.2, C2-3220-CR-013 1820 3200-25J-031 COARSE SCREEN FEED COARSE ORE SURGE BINS, C2-3240-BN-011/012/013/014 1787 3200-25J-011 FRESH WATER 3486 5100-25J-014 SEC. CRUSHER PRODUCT SECONDARY CRUSHERNO.1, C2-3220-CR-012 1818 3200-25J-027 PRIM. CRUSHER PRODUCT COARSE ORE RECLAIM CONV. NO.1, C2-3210-CV-013 1366 3200-25J-005 DUST DUST COLLECTOR , C2-3220-DC-123 1419 3200-25J-047 SEC. CRUSHER PRODUCT SECONDARY CRUSHER NO.4, C2-3220-CR-014 4112 3200-25J-033 SEC. CRUSHER AREA SUMP COOLING WATER RETURN PUMPBOX, C2-3230-BX-030 1823 3200-25J-079 SEC. CRUSHER PRODUCT SECONDARY CRUSHER NO.3, C2-3220-CR-014 1821 3200-25J-032 H, P2 L, P2 LL, P1 J/SP J/SP J/SP FAULT H, P2 HH, P1 L, P2 H, P2 HH, P1 SAFETY INTERLOCKS H, P2 HH, P1 BRG REAR H, P2 HH, P1 BRG FRONT AFD BRG REAR A-B RHS P1 A-H D,E D,E WRIM BRG FRONT H, P2 HH, P1 A TO N A-B A-B A-B A-B SENSOR GUARD HYDRAULIC RAIL CLAMP LHS J-L END TRAVEL FAULT OVER TRAVEL J/SP A B A END TRAVEL H1, P2 P2 WRIM P1 LHS FAULT P1 OVER TRAVEL CONT. P1 TEAR D,E J-L P1 D,E FAULT A-B P1 RHS LHS P2 A,B P2 A,B BRG FRONT H, P2 HH, P1 LHS RHS H, P2 HH, P1 RHS BRG FRONT H, P2 HH, P1 P2 RHS J-L A-H A-H J-L T5 ES V ES C2-3220-SL-009 C2-3220-DV-016 V V V V V V SIZE: C2-3220-ST-152 CV-016 HEAD TRANSFER CHUTE V V V V T5 C2-3210-MD-017 C2-3220-ST-155 ES ES T5 C2-3220-ZM-216 C2-3220-CV-016 C2-3220-PP-032 3220 04511 XA + V V V V ES V SIZE: MOTOR: C2-3220-DV-016 CV-016 SHUTTLE HEAD V V V ES V V V V ES C2-3220-MA-009 V C2-3220-ST-152 V FV 04518 + FF 04518 + C2-3220-ZE-008 ES V C2-3220-BN-007 3220-WF-1470-C1A-2"-N SIZE: MATERIAL: MOTOR: C2-3220-PP-032 CRUSHING AREA SUMP PUMP NO.2 V V ES ES SIZE: C2-3220-ST-155 CV-016 TRAMP METAL CHUTE V V SIZE: MATERIAL: MOTOR: C2-3220-CV-016 SECONDARY CRUSHER DISCHARGE CONVEYOR NO. 1 V SIZE: MATERIAL: CAPACITY: TRIM: C2-3220-BN-007 CV-016 TRAMP METAL BIN SIZE: C2-3220-SL-009 CV-016 BELT SCALE SIZE: C2-3220-ZM-216 HYDRAULIC RAIL CLAMP V V V 3220-SL-1011-C1B-6"-N ES V SIZE: C2-3220-MA-009 CV-016 SELF CLEANING MAGNET AG KM LT ISSUED FOR CLIENT REVIEW 23-Dec-11 B RP ISSUED FOR COMBINED REVIEW 23-Jun-11 A 12/23/2011 K.MUNDY A.GUNSON T. OH L.TAMELIN 1/3/2012 2:02:27 PM WBS: 3220 B PIPING AND INSTRUMENTATION DIAGRAM SECONDARY CRUSHING 3200-25J-045 SEC. CRUSHER DISCHARGE CONVEYOR 1 SIZE: C2-3210-MD-017 CV-016 METAL DETECTOR ES SIZE: C2-3220-ZE-008 CV016 BELT RIP DETECTOR 3220 XA + D 4 F B A 3 2 1 5 6 8 E 7 C REV. APPROVED CHK. DES. REV. DATE REVISION DESCRIPTION CLIENT LEAD ENGINEER SCALE DRAWING NUMBER CHECK DESIGN CHECK DRAWING DESIGNED BY DRAWN BY APPROVAL DATE APPROVAL DATE APPROVED CHK. DES. REV. DATE REVISION DESCRIPTION REFERENCE DRAWING No. 1:100 0 1:200 5m 10m 0 5m 10m 15m 20m 1:500 10m 0 20m 30m 40m 50m 1:1000 0 100m 50m 1:20 0 0.5m 1m 1.5m 2m 0 1:25 0.5m 1m 1.5m 1:33 1/3 2.5m 2m 0 1m 2m 3m 0 1:50 1m 2m 3m 4m 5m CAD FILE NAME: P:0CAD000SPEM** MODEL UPDATED: DWG. FILE UPDATED: MANUAL CHANGES MADE: YES NO YES NO YES NO PROJECT MANAGER ENGINEERING MANAGER AREA PROJECTENGINEER REFERENCE DRAWINGS SAFETY SHARE: APPROVAL DATE CONTRACT NO. SAFETY SHARE : BA6CVA1.IGR NOTICE: THIS DRAWING HAS NOT BEEN PUBLISHED AND IS THE SOLE PROPERTY OF FLUOR AND IS LENT TO THE BORROWER FOR THEIR CONFIDENTIAL USE ONLY, AND IN CONSIDERATION OF THE LOAN OF THIS DRAWING, THE BORROWER PROMISES AND AGREES TO RETURN IT UPON REQUEST AND AGREES THAT IT WILL NOT BE REPRODUCED, COPIED LENT OR OTHERWISE DISPOSED OF DIRECTLY OR INDIRECTLY, NOR USED FOR ANY OTHER PURPOSE OTHER THAN WHICH IT IS FURNISHED. NONE Apr 2011 240K-C2- J H G K A A-K A-K A-K A-K NOTE 1 E F C D NOTE: 1. IN INSTRUMENT NUMBERING SUFFIXED LETTER 'I' AND 'O' ARE NOT USED B
  • 51.
    T1 T8 T5 GEAR REDUCER GEAR REDUCER GEAR REDUCER HYDRAULIC RAIL CLAMP LHS 3220 04606 A TE 3220 04604 ZAHHP1 3220 04682 G TE 3220 04608 A XS 3220 04602 HSA 3220 04681 HS 3220 04685 HS J/SP 3220 04610 WE 3220 04612 B ZS P2 3220 04684 HS 3220 04684 II 3220 04603 A ST 3220 04681 XA 3220 04606 A TI 3220 04605 ZAHH P1 A,B RHS 3220 04608 XA A,B 3220 04605 ZAH 3220 04510 WI L, P2 3220 04615 B LAH P1 3220 04612 C ZS 3220 04622 ZAH P1 P1 3220 04605 ZAHH 3220 04604 ZAH 3220 04682 HS 3220 04603 B ST 3220 04615 B LE 3220 04680 G TI 3220 04602 HSS RHS 3220 04612 B ZA 3220 04585 XA 3220 04510 WIT 3220 04683 HS (J) JF/JR SP 3220 04681 H TE 3220 04603 B SI 3220 04682 XA 3220 04681 H TI BRG REAR H, P2 HH, P1 3220 04681 G TE 3220 04603 A SE 3220 04615 A LE 3220 04616 LE 3220 04607 A TE 3220 04615 B LSH 3220 04613 XI 3220 04682 H TE 3220 04616 LIT 3220 04601 HSA A-H 3220 04682 II 3220 04684 XA FAULT 3220 04605 ZSH RHS 3220 04601 HSA P1 LHS 3220 04608 B XS 3220 04610 SE 3220 04680 H TI BRG REAR H, P2 HH, P1 3220 04622 ZSA 3220 04621 SAL P1 3220 04607 A TI H, P2 HH, P1 LHS 3220 04613 XE 3220 04605 ZSHH 3220 04612 C ZA P2 3220 04680 XA 3220 04613 XE 3220 04602 HSS RHS 3220 04604 ZSH LHS 3220 04680 II 3220 04612 A ZA 3220 04603 SDI 3220 04612 D ZA OVER TRAVEL 3220 04605 ZAH 3220 04616 LI H, P1 3220 04604 ZSH LHS 3220 04612 A ZS 3220 04683 XA FAULT 3220 04683 II 3220 04680 HS 3220 04604 ZAHH P1 A,B LHS 3220 04613 XY 3220 04613 NA 3220 04680 G TE 3220 04605 ZSH RHS 3220 04613 NS 3220 04602 HSA RHS P1 3220 04682 H TI BRG REAR H, P2 HH, P1 3220 04681 G TI 3220 04682 G TI 3220 04605 ZSHH 3220 04603 A SI 3220 04681 II 3220 04680 H TE 3220 04615 A LAH P1 3220 04612 D ZS 3220 04621 SE 3220 04601 HSS 3220 04604 ZSHH 3220 04613 XY B 3220 04622 ZAHA 3220 04604 ZSHH 3220 04621 SSL 3220 04685 II 3220 04601 HSS LHS 3220 04622 ZSHA 3220 04615 A LSH 3220 04604 ZAH P2 LHS 3220 04603 B SE WRIM SEC. CRUSHER AREA SUMP COOLING WATER RETURN PUMPBOX, C2-3230-BX-030A 3647 3200-25J-079 DUST DUST COLLECTOR , C2-3220-DC-153 3461 3200-25J-047 DUST DUST COLLECTOR , C2-3220-DC-152 3462 3200-25J-047 DUST DUST COLLECTOR , C2-3220-DC-151 3463 3200-25J-047 DUST DUST COLLECTOR , C2-3220-DC-051 3464 3200-25J-047 FRESH WATER 3487 5100-25J-014 COARSE SCREEN FEED COARSE ORE SURGE BINS, C2-3240-BN-015/016/017/018 1969 3200-25J-015 SEC. CRUSHER PRODUCT SECONDARY CRUSHER NO.5, C2-3220-CR-023 1951 3200-25J-034 DUST DUST COLLECTOR , C2-3220-DC-153 1424 3200-25J-047 SEC. CRUSHER PRODUCT SECONDARY CRUSHER NO.6, C2-3220-CR-022 1956 3200-25J-035 PRIM. CRUSHER PRODUCT COARSE ORE RECLAIM CONV. NO.2, C2-3210-CV-023 1933 3200-25J-006 LHS BRG FRONT H, P2 HH, P1 J/SP P1 END TRAVEL J/SP J-L A TO N FAULT TEAR P1 LHS RHS P1 A-B D,E RHS P1 BRG FRONT H, P2 HH, P1 A-H P1 P1 LHS A D,E D,E OVER TRAVEL FAULT A,B J-L P2 END TRAVEL J-L A-H WRIM A,B J-L P2 WRIM P2 RHS A-H H, P2 HH, P1 RHS FAULT A H, P2 L, P2 LL, P1 P1 J/SP B J/SP FAULT H1, P2 A-B D,E BRG FRONT H, P2 HH, P1 ES V C2-3220-ST-154 V SIZE: MATERIAL: MOTOR: C2-3220-PP-033 SECONDARY CRUSHING AREA SUMP PUMP NO.1 C2-3220-BN-008 3220 04611 XA + C2-3220-PP-033 C2-3220-CV-026 T5 V V V V C2-3220-DV-026 C2-3220-SL-026 C2-3220-ST-156 T5 AG KM LT ISSUED FOR CLIENT REVIEW 23-Dec-11 B RP ISSUED FOR COMBINED REVIEW 23-Jun-11 A 12/23/2011 K.MUNDY A.GUNSON T. OH L.TAMELIN 1/3/2012 9:11:28 AM WBS: 3220 B PIPING AND INSTRUMENTATION DIAGRAM SECONDARY CRUSHING 3200-25J-046 SEC. CRUSHER DISCHARGE CONVEYOR 2 3220-WF-1471-C1A-2"-N T5 SIZE: C2-3220-MA-010 CV-026 SELF CLEANING MAGNET ES V V V V SIZE: C2-3220-ZM-226 HYDRAULIC RAIL CLAMP SIZE: C2-3220-MD-018 CV-026 METAL DETECTOR V V ES SIZE: C2-3220-SL-026 CV-026 BELT SCALE V SIZE: MATERIAL: MOTOR: C2-3220-CV-026 SECONDARY CRUSHER DISCHARGE CONVEYOR NO. 2 V ES SIZE: C2-3220-ST-156 CV-016 TRAMP METAL CHUTE SIZE: C2-3220-ST-154 CV-026 HEAD TRANSFER CHUTE ES ES C2-3220-MA-010 V V V 3220-SL-1012-C1B-6"-N SIZE: MATERIAL: CAPACITY: TRIM: C2-3220-BN-008 CV-016 TRAMP METAL BIN SIZE: MOTOR: C2-3220-DV-026 CV-026 SHUTTLE HEAD V C2-3220-ZM-226 ES V D 4 F B A 3 2 1 5 6 8 E 7 C REV. APPROVED CHK. DES. REV. DATE REVISION DESCRIPTION CLIENT LEAD ENGINEER SCALE DRAWING NUMBER CHECK DESIGN CHECK DRAWING DESIGNED BY DRAWN BY APPROVAL DATE APPROVAL DATE APPROVED CHK. DES. REV. DATE REVISION DESCRIPTION REFERENCE DRAWING No. 1:100 0 1:200 5m 10m 0 5m 10m 15m 20m 1:500 10m 0 20m 30m 40m 50m 1:1000 0 100m 50m 1:20 0 0.5m 1m 1.5m 2m 0 1:25 0.5m 1m 1.5m 1:33 1/3 2.5m 2m 0 1m 2m 3m 0 1:50 1m 2m 3m 4m 5m CAD FILE NAME: P:0CAD000SPEM** MODEL UPDATED: DWG. FILE UPDATED: MANUAL CHANGES MADE: YES NO YES NO YES NO PROJECT MANAGER ENGINEERING MANAGER AREA PROJECTENGINEER REFERENCE DRAWINGS SAFETY SHARE: APPROVAL DATE CONTRACT NO. SAFETY SHARE : BA6CVA1.IGR NOTICE: THIS DRAWING HAS NOT BEEN PUBLISHED AND IS THE SOLE PROPERTY OF FLUOR AND IS LENT TO THE BORROWER FOR THEIR CONFIDENTIAL USE ONLY, AND IN CONSIDERATION OF THE LOAN OF THIS DRAWING, THE BORROWER PROMISES AND AGREES TO RETURN IT UPON REQUEST AND AGREES THAT IT WILL NOT BE REPRODUCED, COPIED LENT OR OTHERWISE DISPOSED OF DIRECTLY OR INDIRECTLY, NOR USED FOR ANY OTHER PURPOSE OTHER THAN WHICH IT IS FURNISHED. NONE Apr 2011 240K-C2- 3220 H TI BRG FRONT H, P2 HH, P1 3220 G TI 3220 H TE 3220 G TE SAFETY INTERLOCKS BRG REAR H, P2 HH, P1 BRG FRONT AFD BRG REAR P2 RHS 3220 XA + SEC. CRUSHER PRODUCT SECONDARY CRUSHER NO.8, C2-3220-CR-024 4127 3200-25J-024 SEC. CRUSHER PRODUCT SECONDARY CRUSHER NO.7, C2-3220-CR-023 4132 3200-25J-038 3220 04618 FIT 3220 04618 FIC M C2-3220-ZE-009 SIZE: C2-3220-ZE-009 CV-026 BELT RIP DETECTOR ES 3220 04653 TI H, P2 HH, P1 V 3220 04651 VE 3220 04651 VI H, P2 HH, P1 3220 04652 LA L, P2 3220 04651 VT 3220 04652 LSL 3220 04652 LE 04643 TE 3220 04643 TI H, P2 HH, P1 V 3220 04642 LA 3220 04641 VI 3220 04642 LE 3220 04641 VT 3220 04642 LSL 3220 04641 VE 3220 04633 TI H, P2 HH, P1 04633 TE V 3220 04631 VE 3220 04631 VI 3220 04632 LA 3220 04632 LE 3220 04632 LSL 3220 04631 VT C2-3220-MD-018 ES CONT. H, P2 HH, P1 L, P2 V V ES V V V V V V ES L, P2 H, P2 HH, P1 V V V V ES VENDOR SENSOR GUARD E D C F J H G K A-K A-K A-K A-K A A-B A-B A-B A-B NOTE 1 NOTE: 1 IN INSTRUMENT NUMBERING SUFFIXES LETTER 'I' AND 'O' ARE NOT USED B 3220 04618 FV + 3220 04618 FF + 3220 04653 TE
  • 52.
    D 4 F B A 3 2 1 5 68 E 7 C REV. APPROVED CHK. DES. REV. DATE REVISION DESCRIPTION CLIENT LEAD ENGINEER SCALE DRAWING NUMBER CHECK DESIGN CHECK DRAWING DESIGNED BY DRAWN BY APPROVAL DATE APPROVAL DATE APPROVED CHK. DES. REV. DATE REVISION DESCRIPTION REFERENCE DRAWING No. 1:100 0 1:200 5m 10m 0 5m 10m 15m 20m 1:500 10m 0 20m 30m 40m 50m 1:1000 0 100m 50m 1:20 0 0.5m 1m 1.5m 2m 0 1:25 0.5m 1m 1.5m 1:33 1/3 2.5m 2m 0 1m 2m 3m 0 1:50 1m 2m 3m 4m 5m CAD FILE NAME: P:0CAD000SPEM** MODEL UPDATED: DWG. FILE UPDATED: MANUAL CHANGES MADE: YES NO YES NO YES NO PROJECT MANAGER ENGINEERING MANAGER AREA PROJECTENGINEER REFERENCE DRAWINGS SAFETY SHARE: APPROVAL DATE CONTRACT NO. SAFETY SHARE : BA6CVA1.IGR NOTICE: THIS DRAWING HAS NOT BEEN PUBLISHED AND IS THE SOLE PROPERTY OF FLUOR AND IS LENT TO THE BORROWER FOR THEIR CONFIDENTIAL USE ONLY, AND IN CONSIDERATION OF THE LOAN OF THIS DRAWING, THE BORROWER PROMISES AND AGREES TO RETURN IT UPON REQUEST AND AGREES THAT IT WILL NOT BE REPRODUCED, COPIED LENT OR OTHERWISE DISPOSED OF DIRECTLY OR INDIRECTLY, NOR USED FOR ANY OTHER PURPOSE OTHER THAN WHICH IT IS FURNISHED. NONE Apr 2011 240K-C2- DUST C2-3220-ST-131 1416 3200-25J-027 DUST C2-3220-ST-132 1417 3200-25J-031 DUST C2-3220-ST-133 1418 3200-25J-032 DUST C2-3220-CV-016 1419 3200-25J-045 DUST C2-3220-ST-134 1421 3200-25J-033 DUST C2-3220-ST-135 1422 3200-25J-034 DUST C2-3220-ST-136 1423 3200-25J-035 DUST C2-3220-CV-026 1424 3200-25J-046 AG KM LT ISSUED FOR CLIENT REVIEW 23-Dec-11 B RP ISSUED FOR COMBINED REVIEW 23-Jun-11 A 12/23/2011 K.MUNDY A.GUNSON T. OH L.TAMELIN 12/23/2011 2:50:21 PM WBS: 3220 B PIPING AND INSTRUMENTATION DIAGRAM SECONDARY CRUSHING 3200-25J-047 SECONDARY CRUSHING DUST COLLECTORS 3220 04792 XA FAULT 3220 04792 II ST/SP 3220 04793 II FAULT ST/SP 3220 04793 HS 3220 04796 XA C2-3220-DC-121 3220 04793 XA 3220 04796 II M TO ATMOSPHERE 3220 04792 HS 3220 04797 II C2-3220-FA-121 ST/SP 3220 04797 HS C2-3220-DC-123 3220 04797 XA FAULT TO ATMOSPHERE 3220 04796 HS ST/SP C2-3220-FA-123 FAULT 3220 04782 XA FAULT M 3220 04782 II ST/SP 3220 04783 II FAULT ST/SP 3220 04783 HS 3220 04786 XA 3220 04783 XA 3220 04786 II 3220 04782 HS 3220 04787 II ST/SP M 3220 04787 HS 3220 04787 XA 3220 04786 HS M C2-3220-CV-026 C2-3220-CV-026 C2-3220-CV-026 C2-3220-CV-026 C2-3220-CV-016 C2-3220-CV-016 C2-3220-DC-051 C2-3220-CV-016 SIZE: MOTOR: C2-3220-ZV-085 SEC. CRUSHER DUST COLLECTOR ROTARY VALVE NO.8 SIZE: C2-3220-FA-031 SECONDARY CRUSHER DUST COLLECTOR FAN NO. 8 TO ATMOSPHERE SIZE: MATERIAL: MOTOR: C2-3220-DC-051 SECONDARY CRUSHER DUST COLLECTOR NO. 8 C2-3220-FA-031 C2-3220-DC-152 SIZE: MATERIAL: MOTOR: C2-3220-DC-031 SECONDARY CRUSHER DUST COLLECTOR NO. 4 TO ATMOSPHERE SIZE: C2-3220-FA-027 SECONDARY CRUSHER DUST COLLECTOR FAN NO. 4 C2-3220-FA-152 SIZE: C2-3220-FA-153 SECONDARY CRUSHER DUST COLLECTOR FAN NO. 7 FAULT SIZE: C2-3220-FA-152 SECONDARY CRUSHER DUST COLLECTOR FAN NO. 6 ST/SP SIZE: C2-3220-FA-151 SECONDARY CRUSHER DUST COLLECTOR FAN NO. 5 M FAULT FAULT SIZE: MATERIAL: MOTOR: C2-3220-DC-153 SECONDARY CRUSHER DUST COLLECTOR NO. 7 ST/SP SIZE: MATERIAL: MOTOR: C2-3220-DC-152 SECONDARY CRUSHER DUST COLLECTOR NO. 6 3220 04798 XA FAULT SIZE: 224,300 Nm3/h MATERIAL: MOTOR: C2-3220-DC-151 SECONDARY CRUSHER DUST COLLECTOR NO. 5 M 3220 04798 II SIZE: MOTOR: C2-3220-ZV-153 SEC. CRUSHER DUST COLLECTOR ROTARY VALVE NO.7 3220 04799 II 3220 04794 XA SIZE: MOTOR: C2-3220-ZV-152 SEC. CRUSHER DUST COLLECTOR ROTARY VALVE NO.6 ST/SP 3220 04794 II SIZE: MOTOR: C2-3220-ZV-151 SEC. CRUSHER DUST COLLECTOR ROTARY VALVE NO.5 C2-3220-DC-031 3220 04799 HS 3220 04795 II C2-3220-ZV-153 TO ATMOSPHERE 3220 04799 XA ST/SP C2-3220-ZV-152 C2-3220-FA-027 3220 04798 HS 3220 04795 HS C2-3220-ZV-151 C2-3220-DC-122 3220 04795 XA C2-3220-ZV-085 TO ATMOSPHERE 3220 04794 HS FAULT C2-3220-FA-122 SIZE: C2-3220-FA-123 SECONDARY CRUSHER DUST COLLECTOR FAN NO. 3 ST/SP SIZE: C2-3220-FA-122 SECONDARY CRUSHER DUST COLLECTOR FAN NO.2 FAULT SIZE: C2-3220-FA-121 SECONDARY CRUSHER DUST COLLECTOR FAN NO. 1 FAULT SIZE: MATERIAL: MOTOR: C2-3220-DC-123 SECONDARY CRUSHER DUST COLLECTOR NO. 3 3220 04788 XA ST/SP SIZE: MATERIAL: MOTOR: C2-3220-DC-122 SECONDARY CRUSHER DUST COLLECTOR NO. 2 3220 04788 II FAULT SIZE: MATERIAL: MOTOR: C2-3220-DC-121 SECONDARY CRUSHER DUST COLLECTOR NO. 1 3220 04789 II SIZE: MOTOR: C2-3220-ZV-123 SEC. CRUSHER DUST COLLECTOR ROTARY VALVE NO.3 M ST/SP 3220 04784 XA SIZE: MOTOR: C2-3220-ZV-122 SEC. CRUSHER DUST COLLECTOR ROTARY VALVE NO.2 3220 04789 HS 3220 04784 II SIZE: MOTOR: C2-3220-ZV-121 SEC. CRUSHER DUST COLLECTOR ROTARY VALVE NO.1 3220 04789 XA 3220 04785 II C2-3220-ZV-123 3220 04788 HS ST/SP C2-3220-ZV-122 3220 04785 HS C2-3220-ZV-121 3220 04785 XA C2-3220-ZV-084 SIZE: MOTOR: C2-3220-ZV-084 SEC. CRUSHER DUST COLLECTOR ROTARY VALVE NO.4 3220 04784 HS C2-3220-DC-151 TO ATMOSPHERE C2-3220-FA-151 M C2-3220-DC-153 FAULT TO ATMOSPHERE ST/SP C2-3220-FA-153 FAULT DUST SECONDARY CRUSHER DISCHARGE CONVEYOR NO.1, 3457 3200-25J-045 DUST SECONDARY CRUSHER DISCHARGE CONVEYOR NO.1, 3458 3200-25J-045 DUST SECONDARY CRUSHER DISCHARGE CONVEYOR NO.1, 3459 3200-25J-045 DUST SECONDARY CRUSHER DISCHARGE CONVEYOR NO.1, 3460 3200-25J-045 DUST SECONDARY CRUSHER DISCHARGE CONVEYOR NO.2, 3461 3200-25J-046 DUST SECONDARY CRUSHER DISCHARGE CONVEYOR NO.2, 3462 3200-25J-046 DUST SECONDARY CRUSHER DISCHARGE CONVEYOR NO.2, 3463 3200-25J-046 DUST SECONDARY CRUSHER DISCHARGE CONVEYOR NO.2, 3464 3200-25J-046 C2-3220-CV-016 DUST C2-3220-ST-137 3769 3200-25J-038 DUST C2-3220-ST-138 3773 3200-25J-039 DUST C2-3220-ST-141 4111 3200-25J-027 DUST C2-3220-ST-142 4118 3200-25J-031 DUST C2-3220-ST-143 4154 3200-25J-032 DUST C2-3220-ST-145 4159 3200-25J-034 DUST C2-3220-ST-146 4160 3200-25J-035 DUST C2-3220-ST-147 4161 3200-25J-038 DUST CV-013-DISCHARGE CHUTE C2-3210-ST-040 3420 3200-25J-005 DUST C2-3220-ST-144 4124 3200-25J-033 DUST C2-3220-ST-148 4150 3200-25J-039 DUST CV-023 DISCHARGE CHUTE C2-3210-ST-049 3424 3200-25J-006 VENDOR VENDOR VENDOR VENDOR VENDOR VENDOR VENDOR VENDOR 3220 04701 PDAH 3220 04702 PDAH 3220 04703 PDAH 3220 04704 PDAH 3220 04714 PDAH 3220 04713 PDAH 3220 04712 PDAH 3220 04711 PDAH
  • 53.
    M T5 RHS LHS LHS RHS AIR CANNON AIR CANNON 3230 04826 A TI HH,P2 H, P1 3230 04838 B KL 3230 04835 A LSH 3230 04823 SI 3230 04892 G TE 3230 04819 PDAH 3230 04836 LI 3230 04881 XA 3230 04824 ZSHH A,B 3230 04827 A TI 3230 04823 B SE C,D 3230 04827 B TI HH, P1 H,P2 3230 04836 A LI 3230 04825 ZAH P1 3230 04835 A LAH P1 3230 04823 SDI 3230 04823 A SI 3230 04892 H TE 3230 04825 ZSHH 3230 04821 HSA 3230 04881 HS 3230 04881 II 3230 04817 LSL 3230 04816 A LI 3230 04826 B TI HH, P1 H,P2 3230 04823 B ST 3230 04824 ZAH 3230 04823 A SE 3230 04823 A ST 3230 04827 B TE RHS C,D RHS 3230 04818 B KL 3230 04828 B XS 3230 04816 LT 3230 04892 G TI BRG FRONT H,P2 HH,P1 3200 04824 ZAH 3230 04816 LIC 3230 04892 XA FAULT 3230 04821 HSS 3230 04836 LE 3230 04826 A TE 3230 04892 H TI C,D BRG REAR H,P2 HH,P1 3230 04818 A KL 3230 04826 B TE 3230 04825 ZSHH 3230 04827 A TE 3230 04822 HSS 3230 04836 LT 3230 04892 II 3230 04822 HSA 3230 04824 ZSHH 3230 04825 ZAH 3230 04828 XA 3230 04816 LE 3230 04828 A XS A,B 3230 04838 A KL AIR CANNON 3230 04817 LAL P1 HPGR FEED HPGR FEED CONVEYOR NO.1, C2-3230-CV-050 1358 3200-25J-049 HPGR DISCHARGE HPGR SPEED CONTROL, C2-3230-CR-015 1362 3200-25J-049 HPGR FEED TERTIARY CRUSHER SURGE BIN FEED CONVEYOR NO.1, 1816 3200-25J-025 DUST HPGR DUST COLLECTOR NO.1, C2-3230-DC-041 1356 3200-25J-064 CONVEYOR WEIGHT HPGR FEED CONTROL, C2-3230-CV-050 1825 3200-25J-049 HPGR FEED HPGR SURGE BIN NO.2, C2-3230-BN-032 2027 3200-25J-050 LHS H,P2 HH,P1 L, P2 C2-3240-CV-031 RHS PID 3200-25J-050 LHS C,D RHS P1 A,B A,B RHS P2 A,B A,B LHS RHS ST/SP LHS P1 A,B A-D TO BE CONTINUED ON AIR CANNON TEAR FAULT HH, P2 H, P1 LHS H,P2 HH,P1 L, P2 A,B LHS P2 A,B DUCTING C2-3230-FA-071 C2-3230-ST-181 C2-3230-AV-001 C2-3230-AV-003 3230 04831 XA + C2-3230-ST-161 C2-3230-AV-004 C2-3230-DC-071 C2-3230-AV-002 C2-3230-FE-051 C2-3230-BN-031 TO ATMOSPHERE SIZE: C2-3230-ST-161 HPGR FEEDER NO. 1 SKIRT SIZE: MATERIAL: CAPACITY: TRIM:C1A C2-3230-BN-031 HPGR SURGE BIN NO.1 ES SIZE: C2-3230-DC-071 HPGR FEED BIN DUST COLLECTOR SIZE: C2-3230-AV-001 HPGR SURGE BIN AIR CANNON NO. 1 ES SIZE: C2-3230-AV-004 HPGR SURGE BIN AIR CANNON NO. 4 3220-AP-1091-C1A-2"-N SIZE: C2-3230-ST-181 HPGR FEEDER NO. 1 HEAD CHUTE ES ES ES SIZE: C2-3230-AV-003 HPGR SURGE BIN AIR CANNON NO. 3 SIZE: C2-3230-AV-002 HPGR SURGE BIN AIR CANNON NO. 2 AG KM LT ISSUED FOR CLIENT REVIEW 23-Dec-11 B RP ISSUED FOR COMBINED REVIEW 23-Jun-11 A 12/23/2011 K.MUNDY A.GUNSON T. OH L.TAMELIN 1/3/2012 2:13:09 PM WBS: 3230 B PIPING AND INSTRUMENTATION DIAGRAM TERTIARY CRUSHING 3200-25J-048 HPGR NO. 1 FEEDER D 4 F B A 3 2 1 5 6 8 E 7 C REV. APPROVED CHK. DES. REV. DATE REVISION DESCRIPTION CLIENT LEAD ENGINEER SCALE DRAWING NUMBER CHECK DESIGN CHECK DRAWING DESIGNED BY DRAWN BY APPROVAL DATE APPROVAL DATE APPROVED CHK. DES. REV. DATE REVISION DESCRIPTION REFERENCE DRAWING No. 1:100 0 1:200 5m 10m 0 5m 10m 15m 20m 1:500 10m 0 20m 30m 40m 50m 1:1000 0 100m 50m 1:20 0 0.5m 1m 1.5m 2m 0 1:25 0.5m 1m 1.5m 1:33 1/3 2.5m 2m 0 1m 2m 3m 0 1:50 1m 2m 3m 4m 5m CAD FILE NAME: P:0CAD000SPEM** MODEL UPDATED: DWG. FILE UPDATED: MANUAL CHANGES MADE: YES NO YES NO YES NO PROJECT MANAGER ENGINEERING MANAGER AREA PROJECTENGINEER REFERENCE DRAWINGS SAFETY SHARE: APPROVAL DATE CONTRACT NO. SAFETY SHARE : BA6CVA1.IGR NOTICE: THIS DRAWING HAS NOT BEEN PUBLISHED AND IS THE SOLE PROPERTY OF FLUOR AND IS LENT TO THE BORROWER FOR THEIR CONFIDENTIAL USE ONLY, AND IN CONSIDERATION OF THE LOAN OF THIS DRAWING, THE BORROWER PROMISES AND AGREES TO RETURN IT UPON REQUEST AND AGREES THAT IT WILL NOT BE REPRODUCED, COPIED LENT OR OTHERWISE DISPOSED OF DIRECTLY OR INDIRECTLY, NOR USED FOR ANY OTHER PURPOSE OTHER THAN WHICH IT IS FURNISHED. NONE Apr 2011 240K-C2- AFD SIZE: MOTOR: C2-3230-FE-051 HPGR CRUSHER FEEDER NO. 1 SIZE: MOTOR: C2-3230-FA-071 HPGR FEED BIN DUST COLLECTOR FAN C2-3230-ZM-068 SIZE: MOTOR: C2-3230-ZM-068 SPILE BAR INSERTION UNIT - CRUSHING V V V V V V 3230 04825 ZSH 3230 04824 ZSH V V V V 3230 04824 ZAHH 3230 04825 ZAHH P1 P1 LHS RHS V V V V 3230 04825 ZSH 3230 04824 ZSH 3230 04825 ZAHH 3230 04824 ZAHH V V V V P1 P1 P2 P2 V V V V 3230 04835 B LSH 3230 04835 B LAH P1 ES M 3230 04883 XA 3230 04883 HS 3230 04883 II ST/SP FAULT C2-3230-DC-072 TO ATMOSPHERE C2-3230-FA-072 SIZE: C2-3230-DC-072 HPGR FEED BIN DUST COLLECTOR SIZE: MOTOR: C2-3230-FA-072 HPGR FEED BIN DUST COLLECTOR FAN 3230-AP-1294-C1A-2"-N PLANT AIR GRINDING AREA PLANT AIR DISTRIBUTION HEADER 2995 3200-25J-017 PLANT AIR 4153 VENDOR VENDOR 3230 04820 PDAH ES
  • 54.
    3230 04903 A ST 3230 04903 A SE 3230 04907B TE HH, P1 H, P2 3230 04909 NA P1 3230 04909 NS 3230 34981 H TI 3230 34981 G TE 3230 34981 G TI BRG FRONT H, P2 HH, P1 3230 34981 H TE BRG REAR H, P2 HH, P1 3230 34982 H TE 3230 34982 G TE 3230 34982 G TI 3230 34982 H TI BRG FRONT H, P2 HH, P1 3230 04916 LI 3230 04916 LIT 3230 04916 LE 3230 04982 II 3230 04982 HS J/SP 3230 04982 XA H, P2 L, P2 LL, P1 3230 04932 FS 3230 04932 FA 3230 04932 XL 3230 04915 B LAH 3230 04906 B TI HH, P1 H, P2 3230 04906 B TE 3230 04904 ZAH RHS P2 3230 04903 B ST 3230 04902 HSA 3230 04915 B LSH 3230 04903 B SE 3230 04901 HSA 3230 04901 HSS 3230 04905 ZSHH 3230 04902 HSS LHS A,B 3230 04905 ZSH 3230 04903 SDI 3230 04908 B XS 3230 04904 ZSHH 3230 04908 A XS 3230 04904 ZSH A,B 3230 04903 B SI 3230 04917 LIC 3230 04907 A TI 3230 04903 A SI 3230 04907 A TE HH, P1 H, P2 3230 04907 B TI 3230 04910 WIC H, P2 HH, P2 L, P2 LL, P2 3230 04906 A TI HH, P1 H, P2 3230 04906 A TE A-B 3230 04910 WIT 3230 04917 LE 3230 04905 ZAH 3230 04910 WE 3230 04931 AI 3230 04931 AT A,B A,B RHS P2 H, P1 P1 P1 RHS A,B I M A G E BRG REAR H, P2 HH, P1 RHS LHS RHS LHS RHS A-B P1 LHS A,B C2-3230-CV-050 C2-3230-ST-241 C2-3230-CR-015 C2-3230-ST-215 C2-3230-SL-051 C2-3230-ST-221 C2-3230-MD-031 C2-3230-PP-044 C2-3230-ST-197 C2-3230-DV-031 3230 04932 XA + D 4 F B A 3 2 1 5 6 8 E 7 C REV. APPROVED CHK. DES. REV. DATE REVISION DESCRIPTION CLIENT LEAD ENGINEER SCALE DRAWING NUMBER CHECK DESIGN CHECK DRAWING DESIGNED BY DRAWN BY APPROVAL DATE APPROVAL DATE APPROVED CHK. DES. REV. DATE REVISION DESCRIPTION REFERENCE DRAWING No. 1:100 0 1:200 5m 10m 0 5m 10m 15m 20m 1:500 10m 0 20m 30m 40m 50m 1:1000 0 100m 50m 1:20 0 0.5m 1m 1.5m 2m 0 1:25 0.5m 1m 1.5m 1:33 1/3 2.5m 2m 0 1m 2m 3m 0 1:50 1m 2m 3m 4m 5m CAD FILE NAME: P:0CAD000SPEM** MODEL UPDATED: DWG. FILE UPDATED: MANUAL CHANGES MADE: YES NO YES NO YES NO PROJECT MANAGER ENGINEERING MANAGER AREA PROJECTENGINEER REFERENCE DRAWINGS SAFETY SHARE: APPROVAL DATE CONTRACT NO. SAFETY SHARE : BA6CVA1.IGR NOTICE: THIS DRAWING HAS NOT BEEN PUBLISHED AND IS THE SOLE PROPERTY OF FLUOR AND IS LENT TO THE BORROWER FOR THEIR CONFIDENTIAL USE ONLY, AND IN CONSIDERATION OF THE LOAN OF THIS DRAWING, THE BORROWER PROMISES AND AGREES TO RETURN IT UPON REQUEST AND AGREES THAT IT WILL NOT BE REPRODUCED, COPIED LENT OR OTHERWISE DISPOSED OF DIRECTLY OR INDIRECTLY, NOR USED FOR ANY OTHER PURPOSE OTHER THAN WHICH IT IS FURNISHED. NONE Apr 2011 240K-C2- C2-3230-ES-031 VENDOR TEAR 3230 04917 LIT DUCTING VENDOR VENDOR MOTOR CONTROL SYSTEM CRUSHER LUBRICATION AND COOLING SYSTEM 3230 34983 II 3230 34983 XA 3230 34983 HS FAULT J/SP P.O NO.: VENDOR DWG NO.: VENDOR: P.O NO.: VENDOR DWG NO.: VENDOR: HPGR FEED HPGR CRUSHER FEEDER NO.1, C2-3230-FE-051 1358 3200-25J-048 3200-LIC-04816 BIN LEVEL CONTROL, C2-3230-BN-031 1362 3200-25J-048 3230 04910 SE 3230 34982 II 3230 34982 XA 3230 34982 HS FAULT J/SP AFD 3230 34981 II 3230 34981 XA 3230 34981 HS FAULT J/SP AFD FC V1 3230 04981 II 3230 04981 XA 3230 04981 HS FAULT J/SP 3230 04908 XA P1 RHS LHS 3230 04915 B LE 3230 04915 A LAH 3230 04915 A LSH P1 3230 04915 A LE CRUSHER FEEDER HPGR FEED CONTROL, C2-3230-FE-051 1825 3200-25J-048 DUST HPGR DUST COLLECTOR, C2-3230-DC-0162 1826 3200-25J-064 TER CRUSHER PRODUCT CV-015 DISCHARGE CONVEYOR NO.1, 1360 3200-25J-073 C2-3230-CV-017 T3 T8 T1 T3 SIZE: C2-3230-ST-197 CR-015 DIVERTER CHUTE SIZE: C2-3230-ST-221 CR-015 FEED CHUTE V 3230-SL-1013-C1B-6"-N ES ES SIZE: C2-3230-MD-031 CR-015 METAL DETECTOR ES V V ES ES SIZE: C2-3230-DV-031 CR-015 FEED DIVERTER DRIVE SIZE: MATERIAL: MOTOR: C2-3230-PP-044 HPGR AREA SUMP PUMP NORTH SIZE: C2-3230-CR-015 HPGR NO.1 V SIZE: C2-3230-SL-051 CR-015 FEED CONVEYOR BELT SCALE SIZE: MATERIAL: MOTOR: C2-3230-CV-050 CR-015 FEED CONVEYOR ES ES SIZE: C2-3230-ES-031 HPGR EYEWASH STATION SIZE: C2-3230-ST-215 CR-015 FEED CONVEYOR HEAD CHUTE V ES V SIZE: C2-3230-ST-241 CR-015 DISCHARGE CHUTE DOMESTIC WATER 2781 5400-25J-022 AG KM LT ISSUED FOR CLIENT REVIEW 23-Dec-11 B RP ISSUED FOR COMBINED REVIEW 23-Jun-11 A 12/23/2011 K.MUNDY A.GUNSON T. OH L.TAMELIN 1/3/2012 2:13:35 PM WBS: 3230 B PIPING AND INSTRUMENTATION DIAGRAM TERTIARY CRUSHING 3200-25J-049 HPGR NO. 1 A,B FAULT RHS LHS V V V V V V V V V 3230 04904 ZAHH 3230 04905 ZAHH A,B P1 P1 3230-WD-1033-G1A-1"-N TER CRUSHER SUMP COOLING WATER RETURN PUMPBOX, C2-3230-BX-030 3671 3200-25J-079 GEAR REDUCER 3230 04921 VE 3230 04921 VT 3230 04921 VI 3230 04922 LE 3230 04922 LSL 3230 04922 LA 3230 04923 TE 3230 04923 TI V V V V V L, P2 H, P2 HH, P1 H, P2 HH, P1 T3 ES ES VENDOR V DUST HPGR DUST COLLECTOR, C2-3230-DC-163 4168 3200-25J-064 HPGR FEED BYPASS C2-3230-CV-017 4169 3200-25J-073 CONVEYOR DUCTING DUST HPGR DUST COLLECTOR, C2-3230-DC-0161 4171 3200-25J-064 DUCTING AFD
  • 55.
    T5 A, B M AIR CANNON AIR CANNON 3230 05006 B TI 3230 05007A TE 3230 05015 A LAH 3230 05082 II 3230 05019 PDAH 3230 05003 B SI 3230 05003 A SI 3230 05018 A KL 3230 05038 A KL AIR CANNON 3230 05081 HS 3230 05006 A TE 3230 05008 A XS TEAR 3230 05036 A LI 3230 05017 LSL 3230 05016 LE 3230 05006 B TE 3230 05008 XA 3230 05008 B XS 3230 05001 HSA 3230 05082 G TI 3230 05017 LAL P1 3230 05016 A LI 3230 05038 B KL 3230 05007 A TI 3230 05001 HSS 3230 05036 LI 3230 05036 LT 3230 05082 H TE 3230 05002 HSS 3230 05018 B KL 3230 05016 LT 3230 05081 II 3230 05015 A LSH 3230 05003 B ST 3230 05016 LIC 3230 05082 G TE 3230 05003 B SE 3230 05006 A TI HH, P2 H, P1 3230 05003 SDI 3230 05082 XA FAULT 3230 05081 XA 3230 05036 LE 3230 05003 A SE 3230 05082 H TI BRG REAR H,P2 HH,P1 3230 05002 HSA 3230 05003 A ST 3230 05007 B TE 3230 05007 B TI HPGR DISCHARGE HPGR SPEED CONTROL, C2-3250-CR-016 1992 3200-25J-051 CONVEYOR WEIGHT HPGR FEED CONTROL, C2-3230-CV-051 2000 3200-25J-051 HPGR FEED HPGR FEED CONVEYOR NO.2, C2-3230-CV-051 1998 3200-25J-051 DUST HPGR DUST COLLECTOR, C2-3230-DC-041 2025 3200-25J-064 HPGR FEED HPGR FEED SURGE BIN NO.3, C2-3230-BN-033 2059 3200-25J-052 HPGR FEED TERTIARY CRUSHER SURGE BIN FEED CONVEYOR NO.1, 2027 3200-25J-048 PLANT AIR 2028 3900-25J-021 AFD LHS PID 3200-25J-052 TO BE CONTINUED ON PID 3200-25J-048 TO BE CONTINUED ON BRG FRONT H,P2 HH,P1 H,P2 HH,P1 L, P2 H,P1 HH, P1 H, P2 P1 RHS A,B LHS RHS LHS RHS FAULT ST/SP HH, P2 H, P1 DUCTING C2-3240-CV-031 P1 LHS A,B P1 P1 RHS AIR CANNON HH, P1 H, P2 H,P2 HH,P1 L, P2 SIZE: C2-3230-ST-182 HPGR FEEDER NO. 2 HEAD CHUTE AG KM LT ISSUED FOR CLIENT REVIEW 23-Dec-11 B RP ISSUED FOR COMBINED REVIEW 23-Jun-11 A 12/23/2011 K. MUNDY A. GUNSON T. OH L. TAMELIN 1/3/2012 2:16:04 PM WBS: 3230 B PIPING AND INSTRUMENTATION DIAGRAM TERTIARY CRUSHING 3200-25J-050 HPGR NO. 2 FEEDER SIZE: C2-3230-AV-005 HPGR SURGE BIN AIR CANNON NO. 5 C2-3230-ST-162 SIZE: C2-3230-AV-006 HPGR SURGE BIN AIR CANNON NO. 6 C2-3230-AV-006 TO ATMOSPHERE SIZE: C2-3230-AV-008 HPGR SURGE BIN AIR CANNON NO. 8 C2-3230-AV-008 C2-3230-FA-073 C2-3230-DC-073 SIZE: MOTOR: C2-3230-FE-052 HPGR CRUSHER FEEDER NO. 2 SIZE: MOTOR: C2-3230-FA-073 HPGR FEED BIN DUST COLLECTOR FAN 3220-AP-1089-C1A-2"-N SIZE: MATERIAL: CAPACITY: TRIM:C1A C2-3230-BN-032 HPGR SURGE BIN NO.2 C2-3230-AV-007 C2-3230-AV-005 C2-3230-BN-032 SIZE: C2-3230-AV-007 HPGR SURGE BIN AIR CANNON NO. 7 C2-3230-ST-182 SIZE: C2-3230-ST-162 HPGR FEEDER NO. 2 SKIRTS C2-3230-FE-052 SIZE: C2-3230-DC-073 HPGR FEED BIN DUST COLLECTOR ES ES ES ES ES D 4 F B A 3 2 1 5 6 8 E 7 C REV. APPROVED CHK. DES. REV. DATE REVISION DESCRIPTION CLIENT LEAD ENGINEER SCALE DRAWING NUMBER CHECK DESIGN CHECK DRAWING DESIGNED BY DRAWN BY APPROVAL DATE APPROVAL DATE APPROVED CHK. DES. REV. DATE REVISION DESCRIPTION REFERENCE DRAWING No. 1:100 0 1:200 5m 10m 0 5m 10m 15m 20m 1:500 10m 0 20m 30m 40m 50m 1:1000 0 100m 50m 1:20 0 0.5m 1m 1.5m 2m 0 1:25 0.5m 1m 1.5m 1:33 1/3 2.5m 2m 0 1m 2m 3m 0 1:50 1m 2m 3m 4m 5m CAD FILE NAME: P:0CAD000SPEM** MODEL UPDATED: DWG. FILE UPDATED: MANUAL CHANGES MADE: YES NO YES NO YES NO PROJECT MANAGER ENGINEERING MANAGER AREA PROJECTENGINEER REFERENCE DRAWINGS SAFETY SHARE: APPROVAL DATE CONTRACT NO. SAFETY SHARE : BA6CVA1.IGR NOTICE: THIS DRAWING HAS NOT BEEN PUBLISHED AND IS THE SOLE PROPERTY OF FLUOR AND IS LENT TO THE BORROWER FOR THEIR CONFIDENTIAL USE ONLY, AND IN CONSIDERATION OF THE LOAN OF THIS DRAWING, THE BORROWER PROMISES AND AGREES TO RETURN IT UPON REQUEST AND AGREES THAT IT WILL NOT BE REPRODUCED, COPIED LENT OR OTHERWISE DISPOSED OF DIRECTLY OR INDIRECTLY, NOR USED FOR ANY OTHER PURPOSE OTHER THAN WHICH IT IS FURNISHED. NONE Apr 2011 240K-C2- M TO ATMOSPHERE C2-3230-DC-074 FAULT ST/SP 3230 05083 II 3230 05083 HS 3230 05083 XA C2-3230-FA-074 V V V V V V V V V V LHS RHS A,B P1 P1 V V 3230 05005 ZAHH 3230 05004 ZAHH 3230 05004 ZSH RHS A,B 3230 05004 ZSHH LHS A,B 3230 05005 ZAH 3230 05004 ZAH A,B LHS RHS V V 3230 05005 ZSH A,B 3230 05005 ZSHH P2 P2 V V V V 3230 05015 B LAH 3230 05015 B LSH P1 RHS V V 3230 05005 ZSH C,D 3230 05005 ZSHH LHS P2 P2 P1 P1 V V 3230 05005 ZAHH 3230 05004 ZAHH 3230 05004 ZSH RHS C,D 3230 05004 ZSHH LHS C,D 3230 05005 ZAH 3230 05004 ZAH C.D SIZE: MOTOR: C2-3230-FA-074 HPGR FEED BIN DUST COLLECTOR FAN SIZE: C2-3230-DC-074 HPGR FEED BIN DUST COLLECTOR ES 3230-AP-1295-C1A-2"-N A-D 3230 05011 XA + PLANT AIR PLANT AIR DISTRIBUTION HEADER 2996 3200-25J-017 3230 05020 PDAH VENDOR VENDOR ES
  • 56.
    D 4 F B A 3 2 1 5 68 E 7 C REV. APPROVED CHK. DES. REV. DATE REVISION DESCRIPTION CLIENT LEAD ENGINEER SCALE DRAWING NUMBER CHECK DESIGN CHECK DRAWING DESIGNED BY DRAWN BY APPROVAL DATE APPROVAL DATE APPROVED CHK. DES. REV. DATE REVISION DESCRIPTION REFERENCE DRAWING No. 1:100 0 1:200 5m 10m 0 5m 10m 15m 20m 1:500 10m 0 20m 30m 40m 50m 1:1000 0 100m 50m 1:20 0 0.5m 1m 1.5m 2m 0 1:25 0.5m 1m 1.5m 1:33 1/3 2.5m 2m 0 1m 2m 3m 0 1:50 1m 2m 3m 4m 5m CAD FILE NAME: P:0CAD000SPEM** MODEL UPDATED: DWG. FILE UPDATED: MANUAL CHANGES MADE: YES NO YES NO YES NO PROJECT MANAGER ENGINEERING MANAGER AREA PROJECTENGINEER REFERENCE DRAWINGS SAFETY SHARE: APPROVAL DATE CONTRACT NO. SAFETY SHARE : BA6CVA1.IGR NOTICE: THIS DRAWING HAS NOT BEEN PUBLISHED AND IS THE SOLE PROPERTY OF FLUOR AND IS LENT TO THE BORROWER FOR THEIR CONFIDENTIAL USE ONLY, AND IN CONSIDERATION OF THE LOAN OF THIS DRAWING, THE BORROWER PROMISES AND AGREES TO RETURN IT UPON REQUEST AND AGREES THAT IT WILL NOT BE REPRODUCED, COPIED LENT OR OTHERWISE DISPOSED OF DIRECTLY OR INDIRECTLY, NOR USED FOR ANY OTHER PURPOSE OTHER THAN WHICH IT IS FURNISHED. NONE Apr 2011 240K-C2- 3230 05103 A ST 3230 05103 A SE 3230 05107 B TE HH, P1 H, P2 3230 05109 NA P1 3230 05109 NS 3230 35181 H TI 3230 35181 G TE 3230 35181 G TI BRG FRONT H, P2 HH, P1 3230 35181 H TE BRG REAR H, P2 HH, P1 3230 35182 H TE 3230 35182 G TE 3230 35182 G TI 3230 35182 H TI BRG FRONT H, P2 HH, P1 3230 05115 B LAH 3230 05106 B TI HH, P1 H, P2 3230 05106 B TE 3230 05104 ZAH RHS P2 3230 05103 B ST 3230 05102 HSA 3230 05115 B LSH 3230 05103 B SE 3230 05101 HSA 3230 05101 HSS 3230 05105 ZSHH 3230 05102 HSS LHS A,B 3230 05105 ZSH 3230 05103 SDI 3230 05108 B XS 3230 05104 ZSHH 3230 05108 A XS 3230 05104 ZSH A,B 3230 05103 B SI 3230 05117 LIC 3230 05107 A TI 3230 05103 A SI 3230 05107 A TE HH, P1 H, P2 3230 05107 B TI 3230 05110 WIC H, P2 HH, P2 L, P2 LL, P2 3230 05106 A TI HH, P1 H, P2 3230 05106 A TE A-B 3230 05110 WIT 3230 05117 LE 3230 05105 ZAH 3230 05110 WE 3230 05131 AI 3230 05131 AT A,B A,B RHS P2 H, P1 P1 P1 RHS A,B I M A G E BRG REAR H, P2 HH, P1 RHS LHS LHS RHS RHS A-B P1 LHS A,B C2-3230-CV-051 C2-3230-ST-242 C2-3230-CR-016 C2-3230-ST-216 C2-3230-SL-052 C2-3230-ST-222 C2-3230-MD-032 C2-3230-ST-198 C2-3230-DV-032 VENDOR TEAR 3230 05117 LIT DUCTING VENDOR VENDOR MOTOR CONTROL SYSTEM CRUSHER LUBRICATION AND COOLING SYSTEM 3230 35183 II 3230 35183 XA 3230 35183 HS FAULT J/SP SIZE: MATERIAL: MOTOR: C2-3230-CV-051 CR-016 FEED CONVEYOR SIZE: C2-3230-DV-032 CR-016 DIVERTER DRIVE SIZE: C2-3230-ST-222 CR-016 FEED CHUTE SIZE: C2-3230-ST-242 CR-016 DISCHARGE CHUTE SIZE: C2-3230-SL-052 CR-016 FEED CONVEYOR BELT SCALE SIZE: C2-3230-MD-032 CR-016 METAL DETECTOR SIZE: C2-3230-ST-216 CR-016 FEED CONVEYOR HEAD CHUTE SIZE: C2-3230-ST-198 CR-016 DIVERTER CHUTE SIZE: C2-3230-CR-016 HPGR NO.2 P.O NO.: VENDOR DWG NO.: VENDOR: P.O NO.: VENDOR DWG NO.: VENDOR: 3230 05110 SE 3230 35182 II 3230 35182 XA 3230 35182 HS FAULT J/SP AFD 3230 35181 II 3230 35181 XA 3230 35181 HS FAULT J/SP AFD FC V1 3230 05181 II 3230 05181 XA 3230 05181 HS FAULT J/SP 3230 05108 XA P1 RHS LHS 3230 05115 B LE 3230 05115 A LAH 3230 05115 A LSH P1 3230 05115 A LE TER CRUSHER PRODUCT CR-016 DISCHARGE CONVEYOR C2-3230-CV-017 1829 3200-25J-073 3230-LIC-05016 BIN LEVEL CONTROL, C2-3230-BN-032 1992 3200-25J-050 DUST HPGR DUST COLLECTOR C2-3230-DC-162 1997 3200-25J-064 HPGR FEED HPGR CRUSHER FEEDER NO.2, C2-3230-FE-052 1998 3200-25J-050 CRUSHER FEEDER HPGR FEED CONTROL, C2-3230-FE-052 2000 3200-25J-050 T1 T3 T3 ES V ES ES V ES V V ES ES ES V AG KM LT ISSUED FOR CLIENT REVIEW 23-Dec-11 B RP ISSUED FOR COMBINED REVIEW 23-Jun-11 A 12/23/2011 K. MUNDY A. GUNSON T. OH L. TAMELIN 12/23/2011 2:54:06 PM WBS: 3230 B PIPING AND INSTRUMENTATION DIAGRAM TERTIARY CRUSHING 3200-25J-051 HPGR NO. 2 A,B LHS RHS V V V V V V V 3230 05104 ZAHH 3230 05105 ZAHH A,B P1 P1 3230 05121 VE 3230 05121 VT 3230 05121 VI 3230 05122 LE 3230 05122 LSL 3230 05122 LA 3230 05123 TE 3230 05123 TI V V V V V L, P2 T3 GEAR REDUCER H, P2 HH, P1 H, P2 HH, P1 ES V VENDOR DUST HPGR DUST COLLECTOR, C2-3230-DC-163 4189 3200-25J-064 DUCTING HPGR FEED BYPASS C2-3230-CV-017 4191 3200-25J-073 DUST HPGR DUST COLLECTOR, C2-3230-DC-161 4193 3200-25J-064 DUCTING AFD
  • 57.
    M T5 A,B A, B M AIR CANNON AIR CANNON 3230 05283 HS 3230 05283 II 3230 05283 XA 3230 05204 ZSHH C.D 3230 05205 ZSH 3230 05205 ZSHH A,B 3230 05204 ZSHH A,B 3230 05205 ZAHH 3230 05204 ZAH P2 3230 05204 ZSH 3230 05205 ZAH 3230 05204 ZAH P2 3230 05204 ZSH 3230 05204 ZAHH P1 3230 05205 ZAH 3230 05205 ZSH 3230 05204 ZAHH P1 3230 05205 ZSHH C,D 3230 05205 ZAHH 3230 05203 SDI 3230 05208 XA 3230 05206A TI HH, P2 H, P1 3230 05206 A TE LHS 3230 05282 G TE 3230 05215 B LSH 3230 05215 B LAH 3230 05281 XA 3230 05208 A XS TEAR 3230 05217 LSL 3230 05203 B SE RHS 3230 05202 HSA 3230 05238 A KL AIR CANNON 3230 05203 A ST 3230 05236 LE 3230 05207 A TI 3230 05206 B TI 3230 05203 A SE 3230 05203 B ST 3230 05281 II 3230 05216 LT 3230 05207 B TE 3230 05236 LI 3230 05281 HS 3230 05282 G TI 3230 05203 A SI 3230 05202 HSS A,B 3230 05207 B TI 3230 05206 B TE 3230 05215 A LSH 3230 05201 HSS 3230 05238 B KL 3230 05201 HSA 3230 05236 A LI 3230 05236 LT 3230 05282 II 3230 05203 B SI 3230 05282 XA FAULT 3230 05282 H TI BRG REAR H,P2 HH,P1 3230 05219 PDAH 3230 05217 LAL P1 3230 05215 A LAH 3230 05208 B XS 3230 05282 H TE 3230 05216 LIC 3230 05218 A KL 3230 05216 LE 3230 05207 A TE RHS 3230 05218 B KL 3230 05216 A LI CONVEYOR WEIGHT HPGR FEED CONTROL, C2-3230-CV-052 2015 3200-25J-053 HPGR FEED TERTIARY CRUSHER SURGE BIN FEED CONVEYOR NO.1, 2059 3200-25J-050 DUST HPGR DUST COLLECTOR, C2-3230-DC-041 2053 3200-25J-064 HPGR DISCHARGE HPGR SPEED CONTROL, C2-3230-CR-017 2010 3200-25J-053 HPGR FEED HPGR FEED CONVEYOR NO.3, C2-3230-CV-052 2013 3200-25J-053 HPGR FEED HPGR FEED SURGE BIN NO.4, C2-3230-BN-034 2084 3200-25J-054 ST/SP FAULT RHS LHS RHS RHS A,B P1 P2 RHS C,D LHS P1 P2 RHS LHS A,B LHS C,D LHS AFD DUCTING H,P1 P1 FAULT TO BE CONTINUED ON PID 3200-25J-050 HH, P2 H, P1 BRG FRONT H,P2 HH,P1 RHS H,P2 HH,P1 L, P2 HH, P1 H, P2 P1 A-D HH, P1 H, P2 LHS ST/SP LHS AIR CANNON TO BE CONTINUED ON P1 RHS A,B PID 3200-25J-054 H,P2 HH,P1 L, P2 P1 LHS A,B C2-3240-CV-031 P1 C2-3230-FE-053 SIZE: C2-3230-AV-012 HPGR SURGE BIN AIR CANNON NO. 12 TO ATMOSPHERE AG KM LT ISSUED FOR CLIENT REVIEW 23-Dec-11 B RP ISSUED FOR COMBINED REVIEW 23-Jun-11 A 12/23/2011 K. MUNDY A. GUNSON T. OH L. TAMELIN 12/23/2011 2:55:00 PM WBS: 3230 B PIPING AND INSTRUMENTATION DIAGRAM TERTIARY CRUSHING 3200-25J-052 HPGR NO. 3 FEEDER C2-3230-ST-183 C2-3230-AV-012 C2-3230-ST-163 V V V C2-3230-DC-075 SIZE: C2-3230-AV-011 HPGR SURGE BIN AIR CANNON NO. 11 ES SIZE: MOTOR: C2-3230-FA-076 HPGR FEED BIN DUST COLLECTOR FAN SIZE: C2-3230-DC-076 HPGR FEED BIN DUST COLLECTOR SIZE: MATERIAL: CAPACITY: TRIM:C1A C2-3230-BN-033 HPGR FEEDSURGE BIN NO.3 SIZE: C2-3230-DC-075 HPGR FEED BIN DUST COLLECTOR SIZE: C2-3230-ST-163 HPGR FEEDER NO. 3 SKIRTS SIZE: C2-3230-AV-010 HPGR SURGE BIN AIR CANNON NO. 10 SIZE: C2-3230-AV-009 HPGR SURGE BIN AIR CANNON NO. 9 C2-3230-BN-033 C2-3230-FA-075 C2-3230-AV-011 SIZE: C2-3230-ST-183 HPGR FEEDER NO. 3 HEAD CHUTE 3230 05211 XA + SIZE: MOTOR: C2-3230-FE-053 HPGR CRUSHER FEEDER NO. 3 SIZE: MOTOR: C2-3230-FA-075 HPGR FEED BIN DUST COLLECTOR FAN C2-3230-AV-009 C2-3230-AV-010 ES ES ES ES ES 3230-AP-1296-C1A-2"-N 3230-AP-1081-C1A-2"-N V V V V V V V V V V V V V C2-3230-FA-076 TO ATMOSPHERE C2-3230-DC-076 V V V V V V D 4 F B A 3 2 1 5 6 8 E 7 C REV. APPROVED CHK. DES. REV. DATE REVISION DESCRIPTION CLIENT LEAD ENGINEER SCALE DRAWING NUMBER CHECK DESIGN CHECK DRAWING DESIGNED BY DRAWN BY APPROVAL DATE APPROVAL DATE APPROVED CHK. DES. REV. DATE REVISION DESCRIPTION REFERENCE DRAWING No. 1:100 0 1:200 5m 10m 0 5m 10m 15m 20m 1:500 10m 0 20m 30m 40m 50m 1:1000 0 100m 50m 1:20 0 0.5m 1m 1.5m 2m 0 1:25 0.5m 1m 1.5m 1:33 1/3 2.5m 2m 0 1m 2m 3m 0 1:50 1m 2m 3m 4m 5m CAD FILE NAME: P:0CAD000SPEM** MODEL UPDATED: DWG. FILE UPDATED: MANUAL CHANGES MADE: YES NO YES NO YES NO PROJECT MANAGER ENGINEERING MANAGER AREA PROJECTENGINEER REFERENCE DRAWINGS SAFETY SHARE: APPROVAL DATE CONTRACT NO. SAFETY SHARE : BA6CVA1.IGR NOTICE: THIS DRAWING HAS NOT BEEN PUBLISHED AND IS THE SOLE PROPERTY OF FLUOR AND IS LENT TO THE BORROWER FOR THEIR CONFIDENTIAL USE ONLY, AND IN CONSIDERATION OF THE LOAN OF THIS DRAWING, THE BORROWER PROMISES AND AGREES TO RETURN IT UPON REQUEST AND AGREES THAT IT WILL NOT BE REPRODUCED, COPIED LENT OR OTHERWISE DISPOSED OF DIRECTLY OR INDIRECTLY, NOR USED FOR ANY OTHER PURPOSE OTHER THAN WHICH IT IS FURNISHED. NONE Apr 2011 240K-C2- PLANT AIR PLANT AIR DISTRIBUTION HEADER 2997 3200-25J-017 3230 05220 PDAH VENDOR VENDOR PLANT AIR 4210 ES
  • 58.
    D 4 F B A 3 2 1 5 68 E 7 C REV. APPROVED CHK. DES. REV. DATE REVISION DESCRIPTION CLIENT LEAD ENGINEER SCALE DRAWING NUMBER CHECK DESIGN CHECK DRAWING DESIGNED BY DRAWN BY APPROVAL DATE APPROVAL DATE APPROVED CHK. DES. REV. DATE REVISION DESCRIPTION REFERENCE DRAWING No. 1:100 0 1:200 5m 10m 0 5m 10m 15m 20m 1:500 10m 0 20m 30m 40m 50m 1:1000 0 100m 50m 1:20 0 0.5m 1m 1.5m 2m 0 1:25 0.5m 1m 1.5m 1:33 1/3 2.5m 2m 0 1m 2m 3m 0 1:50 1m 2m 3m 4m 5m CAD FILE NAME: P:0CAD000SPEM** MODEL UPDATED: DWG. FILE UPDATED: MANUAL CHANGES MADE: YES NO YES NO YES NO PROJECT MANAGER ENGINEERING MANAGER AREA PROJECTENGINEER REFERENCE DRAWINGS SAFETY SHARE: APPROVAL DATE CONTRACT NO. SAFETY SHARE : BA6CVA1.IGR NOTICE: THIS DRAWING HAS NOT BEEN PUBLISHED AND IS THE SOLE PROPERTY OF FLUOR AND IS LENT TO THE BORROWER FOR THEIR CONFIDENTIAL USE ONLY, AND IN CONSIDERATION OF THE LOAN OF THIS DRAWING, THE BORROWER PROMISES AND AGREES TO RETURN IT UPON REQUEST AND AGREES THAT IT WILL NOT BE REPRODUCED, COPIED LENT OR OTHERWISE DISPOSED OF DIRECTLY OR INDIRECTLY, NOR USED FOR ANY OTHER PURPOSE OTHER THAN WHICH IT IS FURNISHED. NONE Apr 2011 240K-C2- 3230 05303 A ST 3230 05303 A SE 3230 05307 B TE HH, P1 H, P2 3230 05309 NA P1 3230 05309 NS 3230 35381 H TI 3230 35381 G TE 3230 35381 G TI BRG FRONT H, P2 HH, P1 3230 35381 H TE BRG REAR H, P2 HH, P1 3230 35382 H TE 3230 35382 G TE 3230 35382 G TI 3230 35382 H TI BRG FRONT H, P2 HH, P1 3230 05315 B LAH 3230 05306 B TI HH, P1 H, P2 3230 05306 B TE 3230 05304 ZAH LHS P2 3230 05303 B ST 3230 05302 HSA 3230 05315 B LSH 3230 05303 B SE 3230 05301 HSA 3230 05301 HSS 3230 05305 ZSHH 3230 05302 HSS LHS A,B 3230 05305 ZSH 3230 05303 SDI 3230 05308 B XS 3230 05304 ZSHH 3230 05308 A XS 3230 05304 ZSH A,B 3230 05303 B SI 3230 05317 LIC 3230 05307 A TI 3230 05303 A SI 3230 05307 A TE HH, P1 H, P2 3230 05307 B TI 3230 05310 WIC H, P2 HH, P2 L, P2 LL, P2 3230 05306 A TI HH, P1 H, P2 3230 05306 A TE A-B 3230 05310 WIT 3230 05317 LE 3230 05305 ZAH 3230 05310 WE 3230 05331 AI 3230 05331 AT A,B A,B LHS P2 H, P1 P1 P1 RHS A,B I M A G E BRG REAR H, P2 HH, P1 RHS LHS LHS RHS RHS A-B P1 LHS A,B C2-3230-CV-052 C2-3230-ST-243 C2-3230-CR-017 C2-3230-ST-217 C2-3230-SL-053 C2-3230-ST-223 C2-3230-MD-033 C2-3230-ST-199 C2-3230-DV-033 VENDOR TEAR 3230 05317 LIT DUCTING VENDOR VENDOR MOTOR CONTROL SYSTEM CRUSHER LUBRICATION AND COOLING SYSTEM 3230 35383 II 3230 35383 XA 3230 35383 HS FAULT J/SP SIZE: MATERIAL: MOTOR: C2-3230-CV-052 CR-017 FEED CONVEYOR SIZE: C2-3230-DV-033 CR-017 FEED DIVERTER DRIVE SIZE: C2-3230-ST-223 CR-017 FEED CHUTE SIZE: C2-3230-ST-243 CR-017 DISCHARGE CHUTE SIZE: C2-3230-SL-053 CR-017 FEED CONVEYOR BELT SCALE SIZE: C2-3230-MD-033 CR-017 METAL DETECTOR SIZE: C2-3230-ST-217 CR-017 FEED CONVEYOR HEAD CHUTE SIZE: C2-3230-ST-199 CR-017 DIVERTER CHUTE SIZE: C2-3230-CR-017 HPGR NO.3 P.O NO.: VENDOR DWG NO.: VENDOR: P.O NO.: VENDOR DWG NO.: VENDOR: 3230 05310 SE 3230 35382 II 3230 35382 XA 3230 35382 HS FAULT J/SP AFD 3230 35381 II 3230 35381 XA 3230 35381 HS FAULT J/SP AFD FC V1 3230 05381 II 3230 05381 XA 3230 05381 HS FAULT J/SP 3230 05308 XA P1 RHS LHS 3230 05315 B LE 3230 05315 A LAH 3230 05315 A LSH P1 3230 05315 A LE TER CRUSHER PRODUCT CR-017 DISCHARGE CONVEYOR, C2-3230-CV-017 1830 3200-25J-073 3230-LIC-05216 BIN LEVEL CONTROL, C2-3230-BN-033 2010 3200-25J-052 DUST HPGR DUST COLLECTOR, C2-3230-DC-162 2012 3200-25J-064 HPGR FEED HPGR FEEDER NO.3, C2-3230-FE-053 2013 3200-25J-052 CRUSHER FEEDER HPGR FEED CONTROL, C2-3230-FE-053 2015 3200-25J-052 T3 T3 T1 V ES V V V V V ES ES V ES ES ES ES AG KM LT ISSUED FOR CLIENT REVIEW 23-Dec-11 B RP ISSUED FOR COMBINED REVIEW 23-Jun-11 A 12/23/2011 K. MUNDY A. GUNSON T. OH L. TAMELIN 1/3/2012 2:12:22 PM WBS: 3230 B PIPING AND INSTRUMENTATION DIAGRAM TERTIARY CRUSHING 3200-25J-053 HPGR NO. 3 3200-25J-353 LHS RHS A,B V V V V V V V 3230 05304 ZAHH 3230 05305 ZAHH P1 P1 3230 05321 VE 3230 05321 VT 3230 05321 VI 3230 05322 LE 3230 05322 LSL 3230 05322 LA 3230 05323 TE 3230 05323 TI V V V V V L, P2 T3 GEAR REDUCER H, P2 HH, P1 H, P2 HH, P1 ES VENDOR DUST HPGR DUST COLLECTOR, C2-3230-DC-163 4216 3200-25J-064 HPGR FEED BYPASS C2-3230-CV-017 4217 3200-25J-073 DUCTING DUST HPGR DUST COLLECTOR, C2-3230-DC-161 4218 3200-25J-064 DUCTING V AFD
  • 59.
    D 4 F B A 3 2 1 5 68 E 7 C REV. APPROVED CHK. DES. REV. DATE REVISION DESCRIPTION CLIENT LEAD ENGINEER SCALE DRAWING NUMBER CHECK DESIGN CHECK DRAWING DESIGNED BY DRAWN BY APPROVAL DATE APPROVAL DATE APPROVED CHK. DES. REV. DATE REVISION DESCRIPTION REFERENCE DRAWING No. 1:100 0 1:200 5m 10m 0 5m 10m 15m 20m 1:500 10m 0 20m 30m 40m 50m 1:1000 0 100m 50m 1:20 0 0.5m 1m 1.5m 2m 0 1:25 0.5m 1m 1.5m 1:33 1/3 2.5m 2m 0 1m 2m 3m 0 1:50 1m 2m 3m 4m 5m CAD FILE NAME: P:0CAD000SPEM** MODEL UPDATED: DWG. FILE UPDATED: MANUAL CHANGES MADE: YES NO YES NO YES NO PROJECT MANAGER ENGINEERING MANAGER AREA PROJECTENGINEER REFERENCE DRAWINGS SAFETY SHARE: APPROVAL DATE CONTRACT NO. SAFETY SHARE : BA6CVA1.IGR NOTICE: THIS DRAWING HAS NOT BEEN PUBLISHED AND IS THE SOLE PROPERTY OF FLUOR AND IS LENT TO THE BORROWER FOR THEIR CONFIDENTIAL USE ONLY, AND IN CONSIDERATION OF THE LOAN OF THIS DRAWING, THE BORROWER PROMISES AND AGREES TO RETURN IT UPON REQUEST AND AGREES THAT IT WILL NOT BE REPRODUCED, COPIED LENT OR OTHERWISE DISPOSED OF DIRECTLY OR INDIRECTLY, NOR USED FOR ANY OTHER PURPOSE OTHER THAN WHICH IT IS FURNISHED. NONE Apr 2011 240K-C2- M AIR CANNON AIR CANNON 3230 05403 B SE 3230 TE 3230 05482 H TI BRG REAR H,P2 HH,P1 3230 05401 HSA 3230 05481 II 3230 05403 B SI 3230 05406 B TI 3230 05408 B XS 3230 05438 B KL 3230 05408 XA 3230 05403 A SE 3230 05482 G TE 3230 05438 A KL AIR CANNON 3230 05481 HS 3230 05419 PDAH 3230 05402 HSS 3230 05407 B TI 3230 05481 XA 3230 05482 G TI 3230 05416 LE 3230 05482 II 3230 05482 H TE 3230 05436 A LI 3230 05403 B ST 3230 05416 LT 3230 05406 B TE 3230 05407 B TE 3230 05408 A XS 3230 05415 A LSH 3230 05418 B KL 3230 05436 LI 3230 05482 XA FAULT 3230 05415 A LAH 3230 05436 LE 3230 05436 LT 3230 05402 HSA 3230 05406 A TE 3230 05403 A SI 3230 05407 A TE 3230 05417 LSL 3230 05417 LAL P1 3230 05416 A LI 3230 05401 HSS 3230 05418 A KL 3230 05416 LIC DUCTING FAULT BRG FRONT H,P2 HH,P1 ST/SP H,P2 HH,P1 L, P2 AIR CANNON C2-3230-DC-077 C2-3230-ST-164 C2-3230-FA-077 C2-3230-BN-034 C2-3230-FE-054 C2-3230-ST-184 C2-3230-AV-016 C2-3230-AV-015 C2-3230-AV-014 C2-3230-AV-013 SIZE: MATERIAL: CAPACITY: TRIM: C2-3230-BN-034 HPGR FEED SURGE BIN NO.4 TO ATMOSPHERE SIZE: C2-3230-ST-184 HPGR FEEDER NO. 4 HEAD CHUTE SIZE: C2-3230-DC-077 HPGR FEED BIN DUST COLLECTOR SIZE: C2-3230-ST-164 HPGR FEEDER NO. 4 SKIRT SIZE: C2-3230-AV-013 HPGR SURGE BIN AIR CANNON NO. 13 SIZE: C2-3230-AV-014 HPGR SURGE BIN AIR CANNON NO. 14 SIZE: C2-3230-AV-015 HPGR SURGE BIN AIR CANNON NO. 15 SIZE: C2-3230-AV-016 HPGR SURGE BIN AIR CANNON NO. 16 H,P2 HH,P1 L, P2 3230 05403 A ST 3230 05403 SDI H,P1 HH, P1 H, P2 HH, P1 H, P2 P1 3230 05411 XA + A-D 3230 05406 A TI 3230 05407 A TI HH, P2 H, P1 HH, P2 H, P1 RHS LHS A,B TEAR P1 LHS A,B P1 RHS A,B P1 TO BE CONTINUED ON PID 3200-25J-052 CONVEYOR WEIGHT HPGR FEED CONTROL, C2-3230-CV-053 2038 3200-25J-055 HPGR FEED HPGR FEED CONVEYOR NO.4, C2-3230-CV-053 2034 3200-25J-055 HPGR DISCHARGE HPGR SPEED CONTROL, C2-3230-CR-018 2032 3200-25J-055 HPGR FEED TERIARY CRUSHER SURGE BIN FEED CONVEYOR NO.1, 2084 3200-25J-052 C2-3240-CV-031 T5 ES ES ES ES ES AG KM LT ISSUED FOR CLIENT REVIEW 23-Dec-11 B RP ISSUED FOR COMBINED REVIEW 23-Jun-11 A 12/23/2011 K. MUNDY A. GUNSON T. OH L. TAMELIN 1/3/2012 2:07:57 PM WBS: 3230 B PIPING AND INSTRUMENTATION DIAGRAM TERTIARY CRUSHING 3200-25J-054 HPGR NO. 4 FEEDER RHS RHS LHS A,B SIZE: MOTOR: C2-3230-FE-054 HPGR CRUSHER FEEDER NO. 4 SIZE: MOTOR: C2-3230-FA-077 HPGR FEED BIN NO. 4 DUST COLLECTOR FAN AFD V V V V V V V V V V V V V V A,B V 3230 05404 ZSH RHS C,D C.D P1 3230 05405 ZAH V LHS C,D RHS 3230 05404 ZAHH V V 3230 05404 ZAH LHS A,B 3230 05405 ZAHH 3230 05404 ZSH P1 P1 3230 05405 ZSHH LHS 3230 05405 ZSH P2 LHS C,D V 3230 05404 ZSHH V P1 P2 A,B A,B 3230 05405 ZAHH P2 RHS A,B 3230 05404 ZSHH 3230 05405 ZAH RHS 3230 05405 ZSH V 3230 05404 ZAH 3230 05405 ZSHH V P2 3230 05404 ZAHH 3230 05415 B LSH 3230 05415 B LAH P1 ES LHS RHS 3230 05483 HS 3230 05483 II C2-3230-FA-078 C2-3230-DC-078 M ST/SP 3230 05483 XA TO ATMOSPHERE FAULT SIZE: C2-3230-DC-078 HPGR FEED BIN DUST COLLECTOR SIZE: MOTOR: C2-3230-FA-078 HPGR FEED BIN DUST COLLECTOR FAN 3230-AP-1082-C1A-2"-N 3230-AP-1297-C1A-2"-N 3230 05420 PDAH VENDOR VENDOR ES DUST HPGR DUST COLLECTOR, C2-3230-DC-041 4167 3200-25J-064 PLANT AIR 4236 PLANT AIR PLANT AIR DISTRIBUTION HEADER 2998 3200-25J-017
  • 60.
    T3 T3 VENDOR T1 P.O NO.: VENDOR DWGNO.: VENDOR: VENDOR P.O NO.: VENDOR DWG NO.: VENDOR: VENDOR 3230 05501 HSA 3230 05510 SE 3230 35582 G TE 3230 05581 XA 3230 05506 B TI 3230 05515 B LE 3230 35581 G TI BRG FRONT H, P2 HH, P1 3230 05503 SDI 3230 35583 XA 3230 35583 HS J/SP 3230 05505 ZAH 3230 05503 A ST 3230 05515 A LE 3230 05531 AI 3230 05502 HSA 3230 35582 H TI BRG FRONT H, P2 HH, P1 3230 05517 LIT 3230 05507 B TE 3230 05510 WE 3230 05515 B LSH 3230 05515 A LAH 3230 05501 HSS 3230 05503 A SI 3230 05515 A LSH 3230 35582 XA 3230 35581 H TI 3230 35582 HS J/SP 3230 35581 G TE 3230 05507 B TI 3230 35581 HS J/SP 3230 05505 ZSHH 3230 05510 WIC H, P2 HH, P2 L, P2 LL, P2 3230 35581 XA 3230 05508 A XS LHS 3230 05509 NS 3230 05503 B ST 3230 05531 AT 3230 05504 ZSH A,B 3230 35582 II 3230 05510 WIT 3230 35582 G TI 3230 05509 NA P1 3230 05505 ZSH 3230 05502 HSS LHS A,B 3230 05581 HS J/SP 3230 05507 A TI 3230 05503 B SI 3230 05506 A TE A-B 3230 35581 H TE BRG REAR H, P2 HH, P1 3230 05508 B XS RHS 3230 05504 ZAH 3230 05506 B TE 3230 05517 LIC 3230 05581 II 3230 05508 XA 3230 05506 A TI 3230 05504 ZSHH 3230 05507 A TE 3230 35582 H TE 3230 05517 LE 3230 05515 B LAH 3230 05503 B SE 3230 35583 II 3230 35581 II 3230 05503 A SE CRUSHER FEEDER HPGR FEED CONTROL, C2-3230-FE-054 2038 3200-25J-054 HPGR FEED HPGR FEEDER NO.4, C2-3230-FE-054 2034 3200-25J-054 3230-LIC-05416 BIN LEVEL CONTROL, C2-3230-BN-034 2032 3200-25J-054 TER CRUSHER PRODUCT CR-018 DISCHARGE CONVEYOR, C2-3230-CV-017 1831 3200-25J-073 DUST HPGR DUST COLLECTOR, C2-3230-DC-162 2033 3200-25J-064 CRUSHER LUBRICATION AND COOLING SYSTEM AFD FAULT A,B TEAR RHS A-B AFD HH, P1 H, P2 P1 FAULT RHS P1 LHS A,B HH, P1 H, P2 LHS DUCTING MOTOR CONTROL SYSTEM P1 LHS P2 BRG REAR H, P2 HH, P1 H, P1 P1 HH, P1 H, P2 HH, P1 H, P2 RHS P2 I M A G E LHS FAULT A,B P1 RHS A,B FAULT RHS FC SIZE: C2-3230-ST-200 CR-018 DIVERTER CHUTE C2-3230-ST-218 SIZE: C2-3230-ST-244 CR-018 DISCHARGE CHUTE SIZE: C2-3230-DV-034 CR-018 FEED DIVERTER DRIVE C2-3230-MD-034 SIZE: C2-3230-ST-224 CR-018 CRUSHER FEED CHUTE SIZE: C2-3230-MD-034 CR-018 METAL DETECTOR C2-3230-SL-054 C2-3230-CR-018 SIZE: C2-3230-ST-218 CR-018 FEED CONVEYOR HEAD CHUTE C2-3230-ST-244 ES SIZE: C2-3230-CR-018 HPGR NO.4 AG KM LT ISSUED FOR CLIENT REVIEW 23-Dec-11 B RP ISSUED FOR COMBINED REVIEW 23-Jun-11 A 12/23/2011 K. MUNDY A. GUNSON T. OH L. TAMELIN 1/3/2012 2:07:02 PM WBS: 3230 B PIPING AND INSTRUMENTATION DIAGRAM TERTIARY CRUSHING 3200-25J-055 HPGR NO. 4 ES ES V V1 ES ES ES V V ES V SIZE: C2-3230-SL-054 CR-018 FEED CONVEYOR BELT SCALE C2-3230-CV-053 C2-3230-DV-034 C2-3230-ST-200 SIZE: MATERIAL: MOTOR: C2-3230-CV-053 CR-018 CRUSHER FEED CONVEYOR C2-3230-ST-224 D 4 F B A 3 2 1 5 6 8 E 7 C REV. APPROVED CHK. DES. REV. DATE REVISION DESCRIPTION CLIENT LEAD ENGINEER SCALE DRAWING NUMBER CHECK DESIGN CHECK DRAWING DESIGNED BY DRAWN BY APPROVAL DATE APPROVAL DATE APPROVED CHK. DES. REV. DATE REVISION DESCRIPTION REFERENCE DRAWING No. 1:100 0 1:200 5m 10m 0 5m 10m 15m 20m 1:500 10m 0 20m 30m 40m 50m 1:1000 0 100m 50m 1:20 0 0.5m 1m 1.5m 2m 0 1:25 0.5m 1m 1.5m 1:33 1/3 2.5m 2m 0 1m 2m 3m 0 1:50 1m 2m 3m 4m 5m CAD FILE NAME: P:0CAD000SPEM** MODEL UPDATED: DWG. FILE UPDATED: MANUAL CHANGES MADE: YES NO YES NO YES NO PROJECT MANAGER ENGINEERING MANAGER AREA PROJECTENGINEER REFERENCE DRAWINGS SAFETY SHARE: APPROVAL DATE CONTRACT NO. SAFETY SHARE : BA6CVA1.IGR NOTICE: THIS DRAWING HAS NOT BEEN PUBLISHED AND IS THE SOLE PROPERTY OF FLUOR AND IS LENT TO THE BORROWER FOR THEIR CONFIDENTIAL USE ONLY, AND IN CONSIDERATION OF THE LOAN OF THIS DRAWING, THE BORROWER PROMISES AND AGREES TO RETURN IT UPON REQUEST AND AGREES THAT IT WILL NOT BE REPRODUCED, COPIED LENT OR OTHERWISE DISPOSED OF DIRECTLY OR INDIRECTLY, NOR USED FOR ANY OTHER PURPOSE OTHER THAN WHICH IT IS FURNISHED. NONE Apr 2011 240K-C2- LHS RHS A,B V V V V V V V V 3230 05504 ZAHH 3230 05505 ZAHH P1 P1 A,B GEAR REDUCER 3230 05521 VE 3230 05521 VT 3230 05521 VI 3230 05522 LE 3230 05522 LSL 3230 05522 LA 3230 05523 TE 3230 05523 TI V V V V V L, P2 T3 VENDOR DUST HPGR DUST COLLECTOR, C2-3230-DC-163 4170 3200-25J-064 HPGR FEED BYPASS C2-3230-CV-017 4214 3200-25J-073 DUST HPGR DUST COLLECTOR, C2-3230-DC-161 4184 3200-25J-064 DUCTING ES H, P2 HH, P1 H, P2 HH, P1 DUCTING AFD
  • 61.
    D 4 F B A 3 2 1 5 68 E 7 C REV. APPROVED CHK. DES. REV. DATE REVISION DESCRIPTION CLIENT LEAD ENGINEER SCALE DRAWING NUMBER CHECK DESIGN CHECK DRAWING DESIGNED BY DRAWN BY APPROVAL DATE APPROVAL DATE APPROVED CHK. DES. REV. DATE REVISION DESCRIPTION REFERENCE DRAWING No. 1:100 0 1:200 5m 10m 0 5m 10m 15m 20m 1:500 10m 0 20m 30m 40m 50m 1:1000 0 100m 50m 1:20 0 0.5m 1m 1.5m 2m 0 1:25 0.5m 1m 1.5m 1:33 1/3 2.5m 2m 0 1m 2m 3m 0 1:50 1m 2m 3m 4m 5m CAD FILE NAME: P:0CAD000SPEM** MODEL UPDATED: DWG. FILE UPDATED: MANUAL CHANGES MADE: YES NO YES NO YES NO PROJECT MANAGER ENGINEERING MANAGER AREA PROJECTENGINEER REFERENCE DRAWINGS SAFETY SHARE: APPROVAL DATE CONTRACT NO. SAFETY SHARE : BA6CVA1.IGR NOTICE: THIS DRAWING HAS NOT BEEN PUBLISHED AND IS THE SOLE PROPERTY OF FLUOR AND IS LENT TO THE BORROWER FOR THEIR CONFIDENTIAL USE ONLY, AND IN CONSIDERATION OF THE LOAN OF THIS DRAWING, THE BORROWER PROMISES AND AGREES TO RETURN IT UPON REQUEST AND AGREES THAT IT WILL NOT BE REPRODUCED, COPIED LENT OR OTHERWISE DISPOSED OF DIRECTLY OR INDIRECTLY, NOR USED FOR ANY OTHER PURPOSE OTHER THAN WHICH IT IS FURNISHED. NONE Apr 2011 240K-C2- 3230 05608 A XS 3230 05607 B TE 3230 05606 B TE LHS C2-3230-AV-017 C2-3230-AV-018 3230 05616 LT C2-3230-AV-019 3230 05603B ST C2-3230-AV-020 3230 05636 LI C2-3230-ST-191 C2-3230-FE-061 A-D 3230 05682 II C2-3230-BN-035 RHS 3230 05611 XA + C2-3230-FA-181 HH, P2 H, P1 HH, P2 H, P1 3230 05616 LE P1 3230 05682 G TI HH, P1 H, P2 HH, P1 H, P2 3230 05681 XA C2-3230-ST-171 3230 05607 B TI A,B 3230 05602 HSS 3230 05619 PDAH 3230 05681 HS C2-3230-DC-181 AIR CANNON PID 3200-25J-058 TO BE CONTINUED ON H,P2 HH,P1 L, P2 AIR CANNON 3230 05638 A KL ST/SP M BRG FRONT H,P2 HH,P1 3230 05682 G TE P1 RHS A,B 3230 05603 A SE FAULT 3230 05607 A TI P1 LHS A,B DUCTING 3230 05616 LIC TEAR 3230 05608 XA P1 3230 05618 A KL 3230 05601 HSS 3230 05606 A TI 3230 05638 B KL 3230 05608 B XS 3230 05616 A LI P1 3230 05617 LAL 3230 05617 LSL 3230 05606 B TI 3230 05607 A TE 3230 05603B SI 3230 05603 A SI 3230 05681 II 3230 05606 A TE TO ATMOSPHERE 3230 05602 HSA 3230 05636 A LT 3230 05601 HSA 3230 05636 LE 3230 05615 A LAH H,P1 BRG REAR H,P2 HH,P1 3230 05603 SDI 3230 05682 H TI 3230 05682 H TE FAULT 3230 05603B SE 3230 05682 XA 3230 05636 LI 3230 05603 A ST AIR CANNON 3230 05618 B KL H,P2 HH,P1 L, P2 AIR CANNON 3230 05615 A LSH HPGR DISCHARGE HPGR SPEED CONTROL, C2-3230-CR-025 2049 3200-25J-057 HPGR FEED HPGR FEED CONVEYOR NO.5, C2-3230-CV-054 2052 3200-25J-057 CONVEYOR WEIGHT HPGR FEED CONTROL, C2-3230-CV-054 2058 3200-25J-057 DUST HPGR DUST COLLECTOR, C2-3230-DC-079 2108 3200-25J-064 HPGR FEED TERTIARY CRUSHER SURGE BIN FEED CONVEYOR NO.2, 1904 3200-25J-026 C2-3240-CV-041 HPGR FEED HPGR FEED SURGE BIN NO.6, C2-3230-BN-036 2120 3200-25J-058 T5 ES SIZE: C2-3230-AV-018 HPGR SURGE BIN AIR CANNON NO. 18 SIZE: C2-3230-ST-171 HPGR FEEDER NO.5 SKIRT 3230-AP-1084-C1A-2"-N ES SIZE: C2-3230-AV-017 HPGR SURGE BIN AIR CANNON NO. 17 SIZE: C2-3230-ST-191 HPGR FEEDER NO.5 HEAD CHUTE SIZE: C2-3230-AV-019 HPGR SURGE BIN AIR CANNON NO. 19 ES SIZE: C2-3230-DC-181 HPGR FEED BIN DUST COLLECTOR ES SIZE: C2-3230-AV-020 HPGR SURGE BIN AIR CANNON NO. 20 ES SIZE: MATERIAL: CAPACITY: TRIM: C2-3230-BN-035 HPGR SURGE BIN NO.5 AG KM LT ISSUED FOR CLIENT REVIEW 23-Dec-11 B RP ISSUED FOR COMBINED REVIEW 23-Jun-11 A 12/23/2011 K. MUNDY A. GUNSON T. OH L. TAMELIN 1/3/2012 2:05:50 PM WBS: 3230 B PIPING AND INSTRUMENTATION DIAGRAM TERTIARY CRUSHING 3200-25J-056 HPGR NO. 5 FEEDER RHS LHS RHS A,B SIZE: MOTOR: C2-3230-FE-061 HPGR CRUSHER FEEDER NO.5 SIZE: MOTOR: C2-3230-FA-181 HPGR FEED BIN DUST COLLECTOR FAN AFD V V V V V V V V V V V V V V P1 3230 05615 B LAH 3230 05615 B LSH 3230 05605 ZAHH P2 C.D V 3230 05605 ZSHH P2 V 3230 05604 ZAHH V 3230 05605 ZAHH 3230 05604 ZAHH LHS V 3230 05604 ZSH 3230 05604 ZSH P2 RHS C,D RHS A,B RHS P2 3230 05604 ZSHH 3230 05604 ZSHH 3230 05605 ZSH LHS A,B LHS C,D A,B P1 3230 05605 ZAH 3230 05605 ZSHH V 3230 05604 ZAH P1 3230 05605 ZAH A,B V V LHS 3230 05605 ZSH P1 V RHS 3230 05604 ZAH P1 C,D ES LHS RHS A,B M TO ATMOSPHERE C2-3230-DC-182 FAULT ST/SP 3230 05683 II 3230 05683 HS 3230 05683 XA C2-3230-FA-182 SIZE: C2-3230-DC-182 HPGR FEED BIN DUST COLLECTOR SIZE: MOTOR: C2-3230-FA-182 HPGR FEED BIN DUST COLLECTOR FAN 3230-AP-1298-C1A-2"-N PLANT AIR 4240 ES VENDOR VENDOR 3230 05620 PDAH PLANT AIR PLANT AIR DISTRIBUTION HEADER 2999 3200-25J-017
  • 62.
    D 4 F B A 3 2 1 5 68 E 7 C REV. APPROVED CHK. DES. REV. DATE REVISION DESCRIPTION CLIENT LEAD ENGINEER SCALE DRAWING NUMBER CHECK DESIGN CHECK DRAWING DESIGNED BY DRAWN BY APPROVAL DATE APPROVAL DATE APPROVED CHK. DES. REV. DATE REVISION DESCRIPTION REFERENCE DRAWING No. 1:100 0 1:200 5m 10m 0 5m 10m 15m 20m 1:500 10m 0 20m 30m 40m 50m 1:1000 0 100m 50m 1:20 0 0.5m 1m 1.5m 2m 0 1:25 0.5m 1m 1.5m 1:33 1/3 2.5m 2m 0 1m 2m 3m 0 1:50 1m 2m 3m 4m 5m CAD FILE NAME: P:0CAD000SPEM** MODEL UPDATED: DWG. FILE UPDATED: MANUAL CHANGES MADE: YES NO YES NO YES NO PROJECT MANAGER ENGINEERING MANAGER AREA PROJECTENGINEER REFERENCE DRAWINGS SAFETY SHARE: APPROVAL DATE CONTRACT NO. SAFETY SHARE : BA6CVA1.IGR NOTICE: THIS DRAWING HAS NOT BEEN PUBLISHED AND IS THE SOLE PROPERTY OF FLUOR AND IS LENT TO THE BORROWER FOR THEIR CONFIDENTIAL USE ONLY, AND IN CONSIDERATION OF THE LOAN OF THIS DRAWING, THE BORROWER PROMISES AND AGREES TO RETURN IT UPON REQUEST AND AGREES THAT IT WILL NOT BE REPRODUCED, COPIED LENT OR OTHERWISE DISPOSED OF DIRECTLY OR INDIRECTLY, NOR USED FOR ANY OTHER PURPOSE OTHER THAN WHICH IT IS FURNISHED. NONE Apr 2011 240K-C2- 3230 05703 A ST 3230 05703 A SE 3230 05707 B TE HH, P1 H, P2 3230 05709 NA P1 3230 05709 NS 3230 35781 H TI 3230 35781 G TE 3230 35781 G TI BRG FRONT H, P2 HH, P1 3230 35781 H TE BRG REAR H, P2 HH, P1 3230 35782 H TE 3230 35782 G TE 3230 35782 G TI 3230 35782 H TI BRG FRONT H, P2 HH, P1 3230 05716 LI 3230 05716 LIT 3230 05716 LE 3230 05782 II 3230 05782 HS J/SP 3230 05782 XA H, P2 L, P2 LL, P1 3230 05732 FS 3230 05732 FA 3230 05732 XL 3230 05715 B LAH 3230 05706 B TI HH, P1 H, P2 3230 05706 B TE 3230 05704 ZAH RHS P2 3230 05703 B ST 3230 05702 HSA 3230 05715 B LSH 3230 05703 B SE 3230 05701 HSA 3230 05701 HSS 3230 05705 ZSHH 3230 05702 HSS LHS A,B 3230 05705 ZSH 3230 05703 SDI 3230 05708 B XS 3230 05704 ZSHH 3230 05708 A XS 3230 05704 ZSH A,B 3230 05703 B SI 3230 05717 LIC 3230 05707 A TI 3230 05703 A SI 3230 05707 A TE HH, P1 H, P2 3230 05707 B TI 3230 05710 WIC H, P2 HH, P2 L, P2 LL, P2 3230 05706 A TI HH, P1 H, P2 3230 05706 A TE A-B 3230 05710 WIT 3230 05717 LE 3230 05705 ZAH 3230 05710 WE 3230 05731 AI 3230 05731 AT A,B A,B LHS P2 H, P1 P1 P1 RHS A,B I M A G E BRG REAR H, P2 HH, P1 RHS LHS LHS RHS RHS A-B P1 LHS A,B C2-3230-CV-054 C2-3230-ST-251 C2-3230-CR-025 C2-3230-ST-225 C2-3230-SL-061 C2-3230-ST-231 C2-3230-MD-035 C2-3230-PP-042 3230-SL1014-C1B-6"-N C2-3230-ST-211 C2-3230-DV-035 3230 05732 XA + C2-3230-ES-032 VENDOR TEAR 3230 05717 LIT DUCTING VENDOR VENDOR MOTOR CONTROL SYSTEM CRUSHER LUBRICATION AND COOLING SYSTEM 3230 35783 II 3230 35783 XA 3230 35783 HS FAULT J/SP SIZE: MATERIAL: MOTOR: C2-3230-PP-042 HPGR AREA SUMP PUMP SOUTH SIZE: MATERIAL: MOTOR: C2-3230-CV-054 CR-025 FEED CONVEYOR SIZE: C2-3230-DV-035 CR-025 FEED DIVERTER SIZE: C2-3230-ST-231 CR-025 FEED CHUTE SIZE: C2-3230-ST-251 CR-025 DISCHARGE CHUTE SIZE: C2-3230-SL-061 CR-025 FEED CONVEYOR BELT SCALE SIZE: C2-3230-MD-035 CR-025 FEED METAL DETECTOR SIZE: C2-3230-ST-225 FEED CONVEYOR HEAD CHUTE SIZE: C2-3230-ST-211 CR-025 DIVERTER CHUTE SIZE: C2-3230-CR-025 HPGR NO.5 SIZE: C2-3230-ES-032 CR-025 EYEWASH STATION P.O NO.: VENDOR DWG NO.: VENDOR: P.O NO.: VENDOR DWG NO.: VENDOR: 3230 05710 SE 3230 35782 II 3230 35782 XA 3230 35782 HS FAULT J/SP AFD 3230 35781 II 3230 35781 XA 3230 35781 HS FAULT J/SP AFD FC V1 3230 05781 II 3230 05781 XA 3230 05781 HS FAULT J/SP 3230 05708 XA P1 RHS LHS 3230 05715 B LE 3230 05715 A LAH 3230 05715 A LSH P1 3230 05715 A LE TER CRUSHER PRODUCT CR-025 DISCHARGE CONVEYOR, C2-3230-CV-027 1963 3200-25J-074 3230-LIC-05616 BIN LEVEL CONTROL, C2-3230-BN-035 2049 3200-25J-056 TER CRUSHER SUMP COOLING WATER RETURN PUMPBOX, C2-3230-BX-030 2050 3200-25J-079 DUST HPGR DUST COLLECTOR, C2-3230-DC-192 2051 3200-25J-064 HPGR FEED HPGR CRUSHER FEEDER NO.5, C2-320-FE-061 2052 3200-25J-056 CRUSHER FEEDER HPGR FEED CONTROL, C2-3230-FE-061 2058 3200-25J-056 T3 T1 T8 T3 ES V ES ES V ES V ES V ES ES ES DOMESTIC WATER 2784 5400-25J-022 AG KM LT ISSUED FOR CLIENT REVIEW 23-Dec-11 B RP ISSUED FOR COMBINED REVIEW 23-Jun-11 A 12/23/2011 K. MUNDY A. GUNSON T. OH L. TAMELIN 1/3/2012 1:37:04 PM WBS: 3230 B PIPING AND INSTRUMENTATION DIAGRAM TERTIARY CRUSHING 3200-25J-057 HPGR NO. 5 RHS LHS A,B FAULT V V V V V V V V V V V 3230 05704 ZAHH 3230 05705 ZAHH P1 P1 V V 3230-WD-1015-G1A-1"-N 3230 05721 VE 3230 05721 VT 3230 05721 VI 3230 05722 LE 3230 05722 LSL 3230 05722 LA 3230 05723 TE 3230 05723 TI V V V V V L, P2 T3 GEAR REDUCER H, P2 HH, P1 H, P2 HH, P1 ES V VENDOR DUST HPGR DUST COLLECTOR, C2-3230-DC-193 4187 3200-25J-064 DUST HPGR DUST COLLECTOR, C2-3230-DC-191 4194 3200-25J-064 HPGR FEED BYPASS C2-3230-CV-027 4228 3200-25J-074 DUCTING DUCTING AFD
  • 63.
    T5 A, B M AIR CANNON AIR CANNON 3230 05838 B KL 3230 05818B KL 3230 05882 G TE 3230 05815 LSH 3230 05806 A TI HH, P2 H, P1 3230 05808 B XS 3230 05882 H TI BRG REAR H,P2 HH,P1 3230 05802 HSA 3230 05816 LT 3230 05836 A LI 3230 05816 LE 3230 05881 II 3230 05803 A SE 3230 05807 A TE 3230 05807 A TI 3230 05807 B TI 3230 05806 B TI 3230 05807 B TE 3230 05801 HSA 3230 05803 A ST 3230 05806 B TE 3230 05803 B SE 3230 05803 B SI 3230 05806 A TE 3230 05836 LE 3230 05836 LT 3230 05802 HSS 3230 05803 A SI 3230 05819 PDAH 3230 05803 SDI 3230 05816 LIC 3230 05803 B ST 3230 05838 A KL AIR CANNON 3230 05808 A XS TEAR 3230 05817 LAL P1 3230 05808 XA 3230 05882 H TE 3230 05881 XA 3230 05816 A LI 3230 05836 LI 3230 05801 HSS 3230 05882 II 3230 05881 HS 3230 05882 G TI 3230 05882 XA FAULT 3230 05815 LAH 3230 05817 LSL 3230 05818 A KL CONVEYOR WEIGHT HPGR FEED CONTROL, C2-3230-CV-055 2070 3200-25J-059 HPGR FEED HPGR FEED CONVEYOR NO.6, C2-3230-CV-055 2068 3200-25J-059 HPGR DISCHARGE HPGR SPEED CONTROL, C2-3230-CR-026 2066 3200-25J-059 DUST HPGR DUST COLLECTOR, C2-3230-DC-079 2117 3200-25J-064 HPGR FEED HPGR FEED SURGE BIN NO.7, C2-3230-BN-037 2123 3200-25J-060 HPGR FEED TERTIARY CRUSHER SURGE BIN FEED CONVEYOR NO.2, 2120 3200-25J-056 P1 LHS A,B BRG FRONT H,P2 HH,P1 H,P2 HH,P1 L, P2 P1 P1 RHS A,B H,P1 FAULT HH, P1 H, P2 DUCTING RHS AIR CANNON PID 3200-25J-060 HH, P2 H, P1 P1 H,P2 HH,P1 L, P2 LHS ST/SP HH, P1 H, P2 TO BE CONTINUED ON PID 3200-25J-056 C2-3240-CV-041 TO BE CONTINUED ON A-D SIZE: C2-3230-AV-021 HPGR SURGE BIN AIR CANNON NO. 21 C2-3230-AV-023 SIZE: C2-3230-ST-172 HPGR FEEDER NO.6 SKIRT C2-3230-BN-036 SIZE: C2-3230-DC-183 HPGR FEED BIN DUST COLLECTOR SIZE: MATERIAL: CAPACITY: TRIM: C2-3230-BN-036 HPGR FEED SURGE BIN NO.6 3230-AP-1087-C1A-2"-N C2-3230-ST-192 C2-3230-AV-021 C2-3230-DC-183 TO ATMOSPHERE C2-3230-AV-022 C2-3230-ST-172 ES ES ES ES ES AG KM LT ISSUED FOR CLIENT REVIEW 23-Dec-11 B RP ISSUED FOR COMBINED REVIEW 23-Jun-11 A 12/23/2011 K. MUNDY A. GUNSON T. OH L. TAMELIN 1/3/2012 2:34:56 PM WBS: 3230 B PIPING AND INSTRUMENTATION DIAGRAM TERTIARY CRUSHING 3200-25J-058 HPGR NO. 6 FEEDER SIZE: C2-3230-AV-022 HPGRSURGE BIN AIR CANNON NO. 22 SIZE: C2-3230-ST-192 HPGR FEEDER NO.6 HEAD CHUTE SIZE: C2-3230-AV-024 HPGR SURGE BIN AIR CANNON NO. 24 C2-3230-FA-183 SIZE: C2-3230-AV-023 HPGR SURGE BIN AIR CANNON NO. 23 3230 05811 XA + C2-3230-AV-024 C2-3230-FE-062 D 4 F B A 3 2 1 5 6 8 E 7 C REV. APPROVED CHK. DES. REV. DATE REVISION DESCRIPTION CLIENT LEAD ENGINEER SCALE DRAWING NUMBER CHECK DESIGN CHECK DRAWING DESIGNED BY DRAWN BY APPROVAL DATE APPROVAL DATE APPROVED CHK. DES. REV. DATE REVISION DESCRIPTION REFERENCE DRAWING No. 1:100 0 1:200 5m 10m 0 5m 10m 15m 20m 1:500 10m 0 20m 30m 40m 50m 1:1000 0 100m 50m 1:20 0 0.5m 1m 1.5m 2m 0 1:25 0.5m 1m 1.5m 1:33 1/3 2.5m 2m 0 1m 2m 3m 0 1:50 1m 2m 3m 4m 5m CAD FILE NAME: P:0CAD000SPEM** MODEL UPDATED: DWG. FILE UPDATED: MANUAL CHANGES MADE: YES NO YES NO YES NO PROJECT MANAGER ENGINEERING MANAGER AREA PROJECTENGINEER REFERENCE DRAWINGS SAFETY SHARE: APPROVAL DATE CONTRACT NO. SAFETY SHARE : BA6CVA1.IGR NOTICE: THIS DRAWING HAS NOT BEEN PUBLISHED AND IS THE SOLE PROPERTY OF FLUOR AND IS LENT TO THE BORROWER FOR THEIR CONFIDENTIAL USE ONLY, AND IN CONSIDERATION OF THE LOAN OF THIS DRAWING, THE BORROWER PROMISES AND AGREES TO RETURN IT UPON REQUEST AND AGREES THAT IT WILL NOT BE REPRODUCED, COPIED LENT OR OTHERWISE DISPOSED OF DIRECTLY OR INDIRECTLY, NOR USED FOR ANY OTHER PURPOSE OTHER THAN WHICH IT IS FURNISHED. NONE Apr 2011 240K-C2- RHS LHS A,B RHS LHS SIZE: MOTOR: C2-3230-FE-062 HPGR CRUSHER FEEDER NO.6 SIZE: MOTOR: C2-3230-FA-183 HPGR FEED BIN DUST COLLECTOR FAN AFD V V V V V V V V V V V V V V 3230 05815 B LSH 3230 05815 B LAH P1 ES LHS RHS 3230 05805 ZSHH V A,B V P2 V V V A,B 3230 05805 ZSH RHS C,D RHS V P1 3230 05804 ZAHH P1 P2 3230 05804 ZSH 3230 05805 ZSH P1 3230 05804 ZAH LHS A,B RHS A,B P1 3230 05804 ZSH RHS P2 3230 05805 ZSHH 3230 05804 ZAH 3230 05805 ZAHH V 3230 05805 ZAHH LHS LHS P2 C,D C.D V 3230 05804 ZSHH 3230 05805 ZAH 3230 05804 ZSHH 3230 05804 ZAHH 3230 05805 ZAH LHS C,D A,B FAULT 3230 05883 II 3230 05883 XA TO ATMOSPHERE 3230 05883 HS C2-3230-DC-184 M ST/SP C2-3230-FA-184 SIZE: C2-3230-DC-184 HPGR FEED BIN DUST COLLECTOR SIZE: 13600 Nm3/h MOTOR: 15.00 kW C2-3230-FA-184 HPGR FEED BIN DUST COLLECTOR FAN 3230-AP-1299-C1A-2"-N 3230 05820 PDAH VENDOR VENDOR PLANT AIR 4243 ES PLANT AIR PLANT AIR DISTRIBUTION HEADER 3000 3200-25J-017
  • 64.
    T3 T3 VENDOR T1 P.O NO.: VENDOR DWGNO.: VENDOR: VENDOR P.O NO.: VENDOR DWG NO.: VENDOR: VENDOR 3230 35982 HS J/SP 3230 05906 A TE A-B 3230 35983 II 3230 05903 A SI 3230 35982 G TE 3230 05981 XA 3230 05904 ZAH 3230 05908 B XS RHS 3230 35983 XA 3230 05902 HSA 3230 35982 II 3230 05902 HSS RHS A,B 3230 05904 ZSHH 3230 05981 II 3230 05909 NA P1 3230 05905 ZSH 3230 05909 NS 3230 05915 A LAH 3230 05917 LIC 3230 05910 WE 3230 35982 H TI BRG FRONT H, P2 HH, P1 3230 05931 AI 3230 05906 A TI 3230 05903 B ST 3230 05917 LE 3230 05907 A TI 3230 35981 XA 3230 35981 II 3230 05915 B LE 3230 35981 H TI 3230 05901 HSS 3230 05903 A ST 3230 05981 HS J/SP 3230 05903 A SE 3230 05903 B SE 3230 35981 G TE 3230 35981 HS J/SP 3230 05905 ZSHH 3230 05931 AT 3230 05910 SE 3230 35983 HS J/SP 3230 35981 G TI BRG FRONT H, P2 HH, P1 3230 05915 B LSH 3230 05908 XA 3230 35982 G TI 3230 05917 LIT 3230 05906 B TE 3230 35981 H TE BRG REAR H, P2 HH, P1 3230 05915 B LAH 3230 05907 B TI 3230 05907 A TE 3230 05901 HSA 3230 05905 ZAH 3230 05903 B SI 3230 35982 H TE 3230 05904 ZSH A,B 3230 05903 SDI 3230 05906 B TI 3230 05907 B TE 3230 05910 WIC H, P2 HH, P2 L, P2 LL, P2 3230 05910 WIT 3230 05908 A XS LHS 3230 35982 XA 3230 05915 A LSH 3230 05915 A LE 3230-LIC-05816 BIN LEVEL CONTROL, C2-3230-BN-036 2066 3200-25J-058 HPGR FEED HPGR CRUSHER FEEDER NO.6, C2-3230-FE-062 2068 3200-25J-058 TER CRUSHER PRODUCT CR-026 DISCHARGE CONVEYOR , C2-3230-CV-027 1964 3200-25J-074 CRUSHER FEEDER HPGR FEED CONTROL, C2-3230-FE-062 2070 3200-25J-058 DUST HPGR DUST COLLECTOR, C2-3230-DC-192 2067 3200-25J-064 P1 FAULT FAULT TEAR CRUSHER LUBRICATION AND COOLING SYSTEM MOTOR CONTROL SYSTEM AFD LHS P2 BRG REAR H, P2 HH, P1 HH, P1 H, P2 FAULT P1 P1 RHS A,B HH, P1 H, P2 I M A G E DUCTING FAULT LHS RHS P2 H, P1 LHS A,B A,B HH, P1 H, P2 P1 LHS A,B RHS P1 HH, P1 H, P2 AFD RHS LHS A-B ES ES ES ES AG KM LT ISSUED FOR CLIENT REVIEW 23-Dec-11 B RP ISSUED FOR COMBINED REVIEW 23-Jun-11 A 12/23/2011 K. MUNDY A. GUNSON T. OH L. TAMELIN 1/3/2012 10:22:37 AM WBS: 3230 B PIPING AND INSTRUMENTATION DIAGRAM TERTIARY CRUSHING 3200-25J-059 HPGR NO. 6 C2-3230-CR-026 SIZE: C2-3230-MD-036 CR-026 FEED METAL DETECTOR C2-3230-ST-226 SIZE: MATERIAL: MOTOR: C2-3230-CV-055 CR-026 FEED CONVEYOR V V V1 FC ES ES ES V C2-3230-ST-252 C2-3230-MD-036 SIZE: C2-3230-ST-252 CR-026 DISCHARGE CHUTE SIZE: C2-3230-CR-026 HPGR NO.6 C2-3230-ST-212 C2-3230-CV-055 SIZE: C2-3230-ST-226 CR-026 FEED CONVEYOR HEAD CHUTE C2-3230-SL-062 SIZE: C2-3230-ST-232 CR-026 FEED CHUTE C2-3230-DV-036 C2-3230-ST-232 SIZE: C2-3230-ST-212 CR-026 DIVERTER CHUTE SIZE: C2-3230-DV-036 CR-026 FEED DIVERTER DRIVE SIZE: C2-3230-SL-062 CR-026 FEED CONVEYOR BELT SCALE D 4 F B A 3 2 1 5 6 8 E 7 C REV. APPROVED CHK. DES. REV. DATE REVISION DESCRIPTION CLIENT LEAD ENGINEER SCALE DRAWING NUMBER CHECK DESIGN CHECK DRAWING DESIGNED BY DRAWN BY APPROVAL DATE APPROVAL DATE APPROVED CHK. DES. REV. DATE REVISION DESCRIPTION REFERENCE DRAWING No. 1:100 0 1:200 5m 10m 0 5m 10m 15m 20m 1:500 10m 0 20m 30m 40m 50m 1:1000 0 100m 50m 1:20 0 0.5m 1m 1.5m 2m 0 1:25 0.5m 1m 1.5m 1:33 1/3 2.5m 2m 0 1m 2m 3m 0 1:50 1m 2m 3m 4m 5m CAD FILE NAME: P:0CAD000SPEM** MODEL UPDATED: DWG. FILE UPDATED: MANUAL CHANGES MADE: YES NO YES NO YES NO PROJECT MANAGER ENGINEERING MANAGER AREA PROJECTENGINEER REFERENCE DRAWINGS SAFETY SHARE: APPROVAL DATE CONTRACT NO. SAFETY SHARE : BA6CVA1.IGR NOTICE: THIS DRAWING HAS NOT BEEN PUBLISHED AND IS THE SOLE PROPERTY OF FLUOR AND IS LENT TO THE BORROWER FOR THEIR CONFIDENTIAL USE ONLY, AND IN CONSIDERATION OF THE LOAN OF THIS DRAWING, THE BORROWER PROMISES AND AGREES TO RETURN IT UPON REQUEST AND AGREES THAT IT WILL NOT BE REPRODUCED, COPIED LENT OR OTHERWISE DISPOSED OF DIRECTLY OR INDIRECTLY, NOR USED FOR ANY OTHER PURPOSE OTHER THAN WHICH IT IS FURNISHED. NONE Apr 2011 240K-C2- RHS LHS A,B V V V V V V V V 3230 05904 ZAHH 3230 05905 ZAHH P1 P1 3230 05921 VE 3230 05921 VT 3230 05921 VI 3230 05922 LE 3230 05922 LSL 3230 05922 LA 3230 05923 TE 3230 05923 TI V V V V V L, P2 T3 GEAR REDUCER H, P2 HH, P1 H, P2 HH, P1 ES V VENDOR DUST HPGR DUST COLLECTOR, C2-3230-DC-193 4190 3200-25J-064 HPGR FEED BYPASS C2-3230-CV-027 4229 3200-25J-074 DUST HPGR DUST COLLECTOR, C2-3230-DC-191 4197 3200-25J-064 DUCTING DUCTING AFD
  • 65.
    M T5 LHS A, B AIR CANNON AIR CANNON 3230 06006 A TE 3230 06003A ST 3230 06003 A SI 3230 06081 HS 3230 06007 B TI 3230 06008 B TE 3230 06015 A LSH 3230 06003 B SI 3230 06082G TI 3230 06007 A TE 3230 06038 A KL AIR CANNON 3230 06008 B TI 3230 06003 SDI 3230 06018 B KL 3230 06007 B TE 3230 06019 PDAH 3230 06001 HSA 3230 06003 B SE 3230 06016 LT 3230 06082 H TI BRG REAR H,P2 HH,P1 3230 06036 LI 3230 06008 B XS 3230 06002 HSS A,B 3230 06001 HSS 3230 06002 HSA 3230 06038 B KL 3230 06003 A SE 3230 06081 II 3230 06007 A TI 3230 06015 A LAH 3230 06016 LIC 3230 06082 II 3230 06036 LE 3230 06006 A TI HH, P2 H, P1 3230 06036 LT 3230 06036 A LI 3230 06082 XA FAULT 3230 06008 XA 3230 06081 XA 3230 06016 A LI 3230 06017 LSL 3230 06082 H TE 3230 06003 B ST 3230 06016 LE 3230 06018 A KL 3230 06008 A XS TEAR 3230 06017 LAL P1 3230 06082G TE CONVEYOR WEIGHT HPGR FEED CONTROL, C2-3230-CV-056 2085 3200-25J-061 HPGR FEED TERTIARY CRUSHER SURGE BIN FEED CONVEYOR NO.2, 2123 3200-25J-058 DUST HPGR DUST COLLECTOR, C2-3230-DC-079 2124 3200-25J-064 HPGR DISCHARGE HPGR SPEED CONTROL, C2-3230-CR-027 2077 3200-25J-061 HPGR FEED HPGR FEED CONVEYOR NO.7, C2-3230-CV-056 2079 3200-25J-061 HPGR FEED HPGR FEED SURGE BIN NO.8, C2-3230-BN-038 2132 3200-25J-062 RHS A,B RHS LHS FAULT HH, P1 H, P2 ST/SP LHS RHS TO BE CONTINUED ON PID 3200-25J-050 C2-3240-CV-041 AIR CANNON H,P1 P1 RHS A,B A-D HH, P1 H, P2 DUCTING TO BE CONTINUED ON BRG FRONT H,P2 HH,P1 H,P2 HH,P1 L, P2 PID 3200-25J-062 P1 HH, P2 H, P1 P1 P1 LHS A,B H,P2 HH,P1 L, P2 C2-3230-FE-063 SIZE: C2-3230-AV-025 HPGR SURGE BIN AIR CANNON NO. 25 SIZE: MATERIAL: CAPACITY: TRIM: C2-3230-BN-037 HPGR FEED SURGE BIN NO.7 SIZE: C2-3230-AV-026 HPGRSURGE BIN AIR CANNON NO. 26 C2-3230-AV-027 C2-3230-ST-193 SIZE: MOTOR: C2-3230-FE-063 HPGR CRUSHER FEEDER NO.7 SIZE: MOTOR: C2-3230-FA-185 HPGR FEED BIN DUST COLLECTOR FAN C2-3230-FA-185 C2-3230-DC-185 SIZE: C2-3230-DC-185 HPGR FEED BIN DUST COLLECTOR AG KM LT ISSUED FOR CLIENT REVIEW 23-Dec-11 B RP ISSUED FOR COMBINED REVIEW 23-Jun-11 A 12/23/2011 K. MUNDY A. GUNSON T. OH L. TAMELIN 1/3/2012 10:26:53 AM WBS: 3230 B PIPING AND INSTRUMENTATION DIAGRAM TERTIARY CRUSHING 3200-25J-060 HPGR NO. 7 FEEDER TO ATMOSPHERE C2-3230-BN-037 C2-3230-AV-028 SIZE: C2-3230-AV-027 HPGR SURGE BIN AIR CANNON NO. 27 C2-3230-AV-026 C2-3230-ST-173 ES ES ES ES ES SIZE: C2-3230-AV-028 HPGR SURGE BIN AIR CANNON NO. 28 C2-3230-AV-025 SIZE: C2-3230-ST-193 HPGR FEEDER NO.7 HEAD CHUTE SIZE: C2-3230-ST-173 HPGR FEEDER NO.7 SKIRT 3230-AP-1086-C1A-2"-N 3230 06011 XA + D 4 F B A 3 2 1 5 6 8 E 7 C REV. APPROVED CHK. DES. REV. DATE REVISION DESCRIPTION CLIENT LEAD ENGINEER SCALE DRAWING NUMBER CHECK DESIGN CHECK DRAWING DESIGNED BY DRAWN BY APPROVAL DATE APPROVAL DATE APPROVED CHK. DES. REV. DATE REVISION DESCRIPTION REFERENCE DRAWING No. 1:100 0 1:200 5m 10m 0 5m 10m 15m 20m 1:500 10m 0 20m 30m 40m 50m 1:1000 0 100m 50m 1:20 0 0.5m 1m 1.5m 2m 0 1:25 0.5m 1m 1.5m 1:33 1/3 2.5m 2m 0 1m 2m 3m 0 1:50 1m 2m 3m 4m 5m CAD FILE NAME: P:0CAD000SPEM** MODEL UPDATED: DWG. FILE UPDATED: MANUAL CHANGES MADE: YES NO YES NO YES NO PROJECT MANAGER ENGINEERING MANAGER AREA PROJECTENGINEER REFERENCE DRAWINGS SAFETY SHARE: APPROVAL DATE CONTRACT NO. SAFETY SHARE : BA6CVA1.IGR NOTICE: THIS DRAWING HAS NOT BEEN PUBLISHED AND IS THE SOLE PROPERTY OF FLUOR AND IS LENT TO THE BORROWER FOR THEIR CONFIDENTIAL USE ONLY, AND IN CONSIDERATION OF THE LOAN OF THIS DRAWING, THE BORROWER PROMISES AND AGREES TO RETURN IT UPON REQUEST AND AGREES THAT IT WILL NOT BE REPRODUCED, COPIED LENT OR OTHERWISE DISPOSED OF DIRECTLY OR INDIRECTLY, NOR USED FOR ANY OTHER PURPOSE OTHER THAN WHICH IT IS FURNISHED. NONE Apr 2011 240K-C2- 3230 06015 B LSH 3230 06015 B LAH P1 ES V V V V V V V V V V V V V V 3230 06004 ZAHH P1 3230 06004 ZSHH A,B 3230 06005 ZSHH C,D 3230 06004 ZAHH P1 3230 06004 ZSH 3230 06005 ZAH 3230 06004 ZSHH C.D 3230 06005 ZAHH 3230 06005 ZSHH A,B 3230 06004 ZSH 3230 06005 ZAHH 3230 06005 ZAH 3230 06004 ZAH P2 3230 06005 ZSH 3230 06005 ZSH 3230 06004 ZAH P2 P1 P2 P1 P2 RHS RHS C,D LHS RHS A,B LHS RHS LHS C,D LHS A,B V V V V V V V V M 3230 06083 HS 3230 06083 XA 3230 06083 II FAULT ST/SP C2-3230-FA-186 C2-3230-DC-186 TO ATMOSPHERE SIZE: C2-3230-DC-186 HPGR FEED BIN DUST COLLECTOR SIZE: MOTOR: C2-3230-FA-186 HPGR FEED BIN DUST COLLECTOR FAN 3230-AP-1300-C1A-2"-N 3230 06020 PDAH ES AFD VENDOR VENDOR PLANT AIR 4245 PLANT AIR PLANT AIR DISTRIBUTION HEADER 3001 3200-25J-017
  • 66.
    D 4 F B A 3 2 1 5 68 E 7 C REV. APPROVED CHK. DES. REV. DATE REVISION DESCRIPTION CLIENT LEAD ENGINEER SCALE DRAWING NUMBER CHECK DESIGN CHECK DRAWING DESIGNED BY DRAWN BY APPROVAL DATE APPROVAL DATE APPROVED CHK. DES. REV. DATE REVISION DESCRIPTION REFERENCE DRAWING No. 1:100 0 1:200 5m 10m 0 5m 10m 15m 20m 1:500 10m 0 20m 30m 40m 50m 1:1000 0 100m 50m 1:20 0 0.5m 1m 1.5m 2m 0 1:25 0.5m 1m 1.5m 1:33 1/3 2.5m 2m 0 1m 2m 3m 0 1:50 1m 2m 3m 4m 5m CAD FILE NAME: P:0CAD000SPEM** MODEL UPDATED: DWG. FILE UPDATED: MANUAL CHANGES MADE: YES NO YES NO YES NO PROJECT MANAGER ENGINEERING MANAGER AREA PROJECTENGINEER REFERENCE DRAWINGS SAFETY SHARE: APPROVAL DATE CONTRACT NO. SAFETY SHARE : BA6CVA1.IGR NOTICE: THIS DRAWING HAS NOT BEEN PUBLISHED AND IS THE SOLE PROPERTY OF FLUOR AND IS LENT TO THE BORROWER FOR THEIR CONFIDENTIAL USE ONLY, AND IN CONSIDERATION OF THE LOAN OF THIS DRAWING, THE BORROWER PROMISES AND AGREES TO RETURN IT UPON REQUEST AND AGREES THAT IT WILL NOT BE REPRODUCED, COPIED LENT OR OTHERWISE DISPOSED OF DIRECTLY OR INDIRECTLY, NOR USED FOR ANY OTHER PURPOSE OTHER THAN WHICH IT IS FURNISHED. NONE Apr 2011 240K-C2- 3230 06103 A ST 3230 06103 A SE 3230 06107 B TE HH, P1 H, P2 3230 06108 NA P1 3230 06108 NS 3230 36181 H TI 3230 36181 G TE 3230 36181 G TI BRG FRONT H, P2 HH, P1 3230 36181 H TE BRG REAR H, P2 HH, P1 3230 36182 H TE 3230 36182 G TE 3230 36182 G TI 3230 36182 H TI BRG FRONT H, P2 HH, P1 3230 06115 B LAH 3230 06106 B TI HH, P1 H, P2 3230 06106 B TE 3230 06104 ZAH LHS P2 3230 06103 B ST 3230 06102 HSA 3230 06115 B LSH 3230 06103 B SE 3230 06101 HSA 3230 06101 HSS 3230 06105 ZSHH 3230 06102 HSS RHS A,B 3230 06105 ZSH 3230 06103 SDI 3230 06108 B XS 3230 06104 ZSHH 3230 06108 A XS 3230 06104 ZSH A,B 3230 06103 B SI 3230 06117 LIC 3230 06107 A TI 3230 06103 A SI 3230 06107 A TE HH, P1 H, P2 3230 06107 B TI 3230 06110 WIC H, P2 HH, P2 L, P2 LL, P2 3230 06106 A TI HH, P1 H, P2 3230 06106 A TE A-B 3230 06110 WIT 3230 06117 LE 3230 06105 ZAH 3230 06110 WE 3230 06131 AI 3230 06131 AT A,B A,B RHS P2 H, P1 P1 P1 RHS A,B I M A G E BRG REAR H, P2 HH, P1 RHS LHS LHS RHS LHS A-B P1 LHS A,B C2-3230-CV-056 C2-3230-ST-253 C2-3230-CR-027 C2-3230-ST-227 C2-3230-SL-063 C2-3230-ST-233 C2-3230-MD-037 C2-3230-ST-213 C2-3230-DV-037 VENDOR TEAR 3230 06117 LIT DUCTING VENDOR VENDOR MOTOR CONTROL SYSTEM CRUSHER LUBRICATION AND COOLING SYSTEM 3230 36183 II 3230 36183 XA 3230 36183 HS FAULT J/SP SIZE: MATERIAL: MOTOR: C2-3230-CV-056 CR-027 FEED CONVEYOR SIZE: C2-3230-DV-037 CR-027 FEED DIVERTER DRIVE SIZE: C2-3230-ST-233 CR-027 FEED CHUTE SIZE: C2-3230-ST-253 CR-027 DISCHARGE CHUTE SIZE: C2-3230-SL-063 CR-027 FEED CONVEYOR BELT SCALE SIZE: C2-3230-MD-037 CR-027 FEED METAL DETECTOR SIZE: C2-3230-ST-227 CR-027 FEED CONVEYOR HEAD CHUTE SIZE: C2-3230-ST-213 CR-027 DIVERTER CHUTE SIZE: C2-3230-CR-027 HPGR NO.7 P.O NO.: VENDOR DWG NO.: VENDOR: P.O NO.: VENDOR DWG NO.: VENDOR: 3230 06110 SE 3230 36182 II 3230 36182 XA 3230 36182 HS FAULT J/SP AFD 3230 36181 II 3230 36181 XA 3230 36181 HS FAULT J/SP AFD FC V1 3230 06181 II 3230 06181 XA 3230 06181 HS FAULT J/SP 3230 06108 XA P1 RHS LHS 3230 06115 B LE 3230 06115 A LAH 3230 06115 A LSH P1 3230 06115 A LE TER CRUSHER PRODUCT CR-027 DISCHARGE CONVEYOR , C2-3230-CV-027 1965 3200-25J-074 3230-LIC-060-16 BIN LEVEL CONTROL, C2-3230-BN-037 2077 3200-25J-060 DUST HPGR DUST COLLECTOR, C2-3230-DC-192 2078 3200-25J-064 HPGR FEED HPGR CRUSHER FEEDER NO.11, C2-3230-FE-063 2079 3200-25J-060 CRUSHER FEEDER HPGR FEED CONTROL, C2-3230-FE-063 2085 3200-25J-060 T3 T3 T1 ES V ES ES ES ES ES V ES AG KM LT ISSUED FOR CLIENT REVIEW 23-Dec-11 B RP ISSUED FOR COMBINED REVIEW 23-Jun-11 A 12/23/2011 K. MUNDY A. GUNSON T. OH L. TAMELIN 1/3/2012 10:30:40 AM WBS: 3230 B PIPING AND INSTRUMENTATION DIAGRAM TERTIARY CRUSHING 3200-25J-061 HPGR NO. 7 LHS RHS A,B V V V V V V V V V V V 3230 06104 ZAHH 3230 06105 ZAHH P1 P1 3230 06121 VE 3230 06121 VT 3230 06121 VI 3230 06122 LE 3230 06122 LSL 3230 06122 LA 3230 06123 TE 3230 06123 TI V V V V V L, P2 T3 H, P2 HH, P1 GEAR REDUCER H, P2 HH, P1 ES V VENDOR DUST HPGR DUST COLLECTOR, C2-3230-DC-193 4185 3200-25J-064 DUST HPGR DUST COLLECTOR, C2-3230-DC-191 4195 3200-25J-064 HPGR FEED BYPASS C2-3230-CV-027 4230 3200-25J-074 DUCTING DUCTING AFD
  • 67.
    D 4 F B A 3 2 1 5 68 E 7 C REV. APPROVED CHK. DES. REV. DATE REVISION DESCRIPTION CLIENT LEAD ENGINEER SCALE DRAWING NUMBER CHECK DESIGN CHECK DRAWING DESIGNED BY DRAWN BY APPROVAL DATE APPROVAL DATE APPROVED CHK. DES. REV. DATE REVISION DESCRIPTION REFERENCE DRAWING No. 1:100 0 1:200 5m 10m 0 5m 10m 15m 20m 1:500 10m 0 20m 30m 40m 50m 1:1000 0 100m 50m 1:20 0 0.5m 1m 1.5m 2m 0 1:25 0.5m 1m 1.5m 1:33 1/3 2.5m 2m 0 1m 2m 3m 0 1:50 1m 2m 3m 4m 5m CAD FILE NAME: P:0CAD000SPEM** MODEL UPDATED: DWG. FILE UPDATED: MANUAL CHANGES MADE: YES NO YES NO YES NO PROJECT MANAGER ENGINEERING MANAGER AREA PROJECTENGINEER REFERENCE DRAWINGS SAFETY SHARE: APPROVAL DATE CONTRACT NO. SAFETY SHARE : BA6CVA1.IGR NOTICE: THIS DRAWING HAS NOT BEEN PUBLISHED AND IS THE SOLE PROPERTY OF FLUOR AND IS LENT TO THE BORROWER FOR THEIR CONFIDENTIAL USE ONLY, AND IN CONSIDERATION OF THE LOAN OF THIS DRAWING, THE BORROWER PROMISES AND AGREES TO RETURN IT UPON REQUEST AND AGREES THAT IT WILL NOT BE REPRODUCED, COPIED LENT OR OTHERWISE DISPOSED OF DIRECTLY OR INDIRECTLY, NOR USED FOR ANY OTHER PURPOSE OTHER THAN WHICH IT IS FURNISHED. NONE Apr 2011 240K-C2- M AIR CANNON AIR CANNON 3230 06203 B SE 3230 06282 H TI BRG REAR H,P2 HH,P1 3230 06201 HSA 3230 06281 II 3230 06203 B SI 3230 06208 B TI 3230 06208 B XS 3230 06238 B KL 3230 06208 XA 3230 06203 A SE 3230 06282 G TE 3230 06238 A KL AIR CANNON 3230 06281 HS 3230 06219 PDAH 3230 06202 HSS 3230 06207 B TI 3230 06281 XA 3230 06282 G TI 3230 06216 LE 3230 06282 II 3230 06282 H TE 3230 06236 A LI 3230 06203 B ST 3230 06216 LT 3230 06208 B TE 3230 06207 B TE 3230 06208 A XS 3230 06215 A LSH 3230 06218 B KL 3230 06236 LI 3230 06282 XA FAULT 3230 06215 A LAH 3230 06236 LE 3230 06236 LT 3230 06202 HSA 3230 06206 A TE 3230 06203 A SI 3230 06207 A TE 3230 06217 LS 3230 06217 LA L, P1 3230 06216 A LI 3230 06201 HSS 3230 06218 A KL 3230 06216 LIC DUCTING FAULT BRG FRONT H,P2 HH,P1 ST/SP H,P2 HH,P1 L, P2 AIR CANNON C2-3230-DC-187 3230-AP1085-C1A-2"-N C2-3230-ST-174 C2-3230-FA-187 C2-3230-BN-038 C2-3230-FE-064 C2-3230-ST-194 C2-3230-AV-032 C2-3230-AV-031 C2-3230-AV-030 C2-3230-AV-029 SIZE: MATERIAL: CAPACITY: TRIM: C2-3230-BN-038 HPGR FEED SURGE BIN NO.8 TO ATMOSPHERE SIZE: C2-3230-ST-194 HPGR FEEDER NO.8 HEAD CHUTE SIZE: C2-3230-DC-187 HPGR FEED BIN DUST COLLECTOR SIZE: C2-3230-ST-174 HPGR FEEDER NO.8 SKIRT SIZE: C2-3230-AV-029 HPGR SURGE BIN AIR CANNON NO. 29 SIZE: C2-3230-AV-030 HPGR SURGE BIN AIR CANNON NO. 30 SIZE: C2-3230-AV-031 HPGR SURGE BIN AIR CANNON NO. 31 SIZE: C2-3230-AV-032 HPGR SURGE BIN AIR CANNON NO. 32 H,P2 HH,P1 L, P2 3230 06203 A ST 3230 06203 SDI H,P1 HH, P1 H, P2 HH, P1 H, P2 P1 3230 06211 XA + A-D 3230 06206 A TI 3230 06207 A TI HH, P2 H, P1 HH, P2 H, P1 RHS LHS A,B TEAR P1 LHS A,B P1 RHS A,B P1 TO BE CONTINUED ON PID 3200-25J-060 HPGR DISCHARGE HPGR SPEED CONTROL, C2-3230-CR-028 2109 3200-25J-063 HPGR FEED HPGR FEED CONVEYOR NO.8, C2-3230-CV-057 2111 3200-25J-063 CONVEYOR WEIGHT HPGR FEED CONTROL, C2-3230-CV-057 2113 3200-25J-063 DUST HPGR DUST COLLECTOR, C2-3230-DC-079 2126 3200-25J-064 HPGR FEED TERTIARY CRUSHER SURGE BIN FEED CONVEYOR NO.2, 2132 3200-25J-060 C2-3240-CV-041 T5 ES ES ES ES ES AG KM LT ISSUED FOR CLIENT REVIEW 23-Dec-11 B RP ISSUED FOR COMBINED REVIEW 23-Jun-11 A 12/23/2011 K. MUNDY A. GUNSON T. OH L. TAMELIN 1/3/2012 10:33:55 AM WBS: 3230 B PIPING AND INSTRUMENTATION DIAGRAM TERTIARY CRUSHING 3200-25J-062 HPGR NO. 8 FEEDER RHS LHS RHS LHS SIZE: MOTOR: C2-3230-FE-064 HPGR CRUSHER FEEDER NO.8 SIZE: MOTOR: C2-3230-FA-187 HPGR FEED BIN DUST COLLECTOR FAN AFD 3230 06215 B LSH 3230 06215 B LAH P1 ES LHS RHS A,B V V V V V V V V V V V V V V 3230 06205 ZSHH C,D LHS C,D P1 P2 3230 06205 ZSH RHS A,B 3230 06205 ZAHH 3230 06204 ZAHH P1 3230 06204 ZAH P2 RHS LHS A,B 3230 06205 ZSHH A,B 3230 06204 ZAHH V P1 V V 3230 06204 ZSH 3230 06204 ZAH P2 V 3230 06204 ZSHH A,B 3230 06204 ZSH 3230 06205 ZAH LHS V 3230 06204 ZSHH C.D V V LHS RHS C,D 3230 06205 ZAH 3230 06205 ZSH 3230 06205 ZAHH V P1 P2 RHS M 3230 06283 XA ST/SP 3230 06283 HS C2-3230-FA-188 FAULT C2-3230-DC-188 TO ATMOSPHERE 3230 06283 II SIZE: C2-3230-DC-188 HPGR FEED BIN DUST COLLECTOR SIZE: MOTOR: C2-3230-FA-188 HPGR FEED BIN DUST COLLECTOR FAN 3230-AP-1301-C1A-2"-N PLANT AIR 4247 ES VENDOR VENDOR 3230 06220 PDAH PLANT AIR PLANT AIR DISTRIBUTION 4252
  • 68.
    D 4 F B A 3 2 1 5 68 E 7 C REV. APPROVED CHK. DES. REV. DATE REVISION DESCRIPTION CLIENT LEAD ENGINEER SCALE DRAWING NUMBER CHECK DESIGN CHECK DRAWING DESIGNED BY DRAWN BY APPROVAL DATE APPROVAL DATE APPROVED CHK. DES. REV. DATE REVISION DESCRIPTION REFERENCE DRAWING No. 1:100 0 1:200 5m 10m 0 5m 10m 15m 20m 1:500 10m 0 20m 30m 40m 50m 1:1000 0 100m 50m 1:20 0 0.5m 1m 1.5m 2m 0 1:25 0.5m 1m 1.5m 1:33 1/3 2.5m 2m 0 1m 2m 3m 0 1:50 1m 2m 3m 4m 5m CAD FILE NAME: P:0CAD000SPEM** MODEL UPDATED: DWG. FILE UPDATED: MANUAL CHANGES MADE: YES NO YES NO YES NO PROJECT MANAGER ENGINEERING MANAGER AREA PROJECTENGINEER REFERENCE DRAWINGS SAFETY SHARE: APPROVAL DATE CONTRACT NO. SAFETY SHARE : BA6CVA1.IGR NOTICE: THIS DRAWING HAS NOT BEEN PUBLISHED AND IS THE SOLE PROPERTY OF FLUOR AND IS LENT TO THE BORROWER FOR THEIR CONFIDENTIAL USE ONLY, AND IN CONSIDERATION OF THE LOAN OF THIS DRAWING, THE BORROWER PROMISES AND AGREES TO RETURN IT UPON REQUEST AND AGREES THAT IT WILL NOT BE REPRODUCED, COPIED LENT OR OTHERWISE DISPOSED OF DIRECTLY OR INDIRECTLY, NOR USED FOR ANY OTHER PURPOSE OTHER THAN WHICH IT IS FURNISHED. NONE Apr 2011 240K-C2- 3230 06303 A ST 3230 06303 A SE 3230 06307 B TE HH, P1 H, P2 3230 06309 NA P1 3230 06309 NS 3230 36381 H TI 3230 36381 G TE 3230 36381 G TI BRG FRONT H, P2 HH, P1 3230 36381 H TE BRG REAR H, P2 HH, P1 3230 36382 H TE 3230 36382 G TE 3230 36382 G TI 3230 36382 H TI BRG FRONT H, P2 HH, P1 3230 06315 B LAH 3230 06306 B TI HH, P1 H, P2 3230 06306 B TE 3230 06304 ZAH RHS P2 3230 06303 B ST 3230 06302 HSA 3230 06315 B LSH 3230 06303 B SE 3230 06301 HSA 3230 06301 HSS 3230 06305 ZSHH 3230 06302 HSS RHS A,B 3230 06305 ZSH 3230 06303 SDI 3230 06308 B XS 3230 06304 ZSHH 3230 06308 A XS 3230 06304 ZSH A,B 3230 06303 B SI 3230 06317 LIC 3230 06307 A TI 3230 06303 A SI 3230 06307 A TE HH, P1 H, P2 3230 06307 B TI 3230 06310 WIC H, P2 HH, P2 L, P2 LL, P2 3230 06306 A TI HH, P1 H, P2 3230 06306 A TE A-B 3230 06310 WIT 3230 06317 LE 3230 06305 ZAH 3230 06310 WE 3230 06331 AI 3230 06331 AT A,B LHS P2 H, P1 P1 P1 LHS A,B I M A G E BRG REAR H, P2 HH, P1 LHS RHS LHS RHS LHS A-B P1 RHS A,B C2-3230-CV-057 C2-3230-ST-254 C2-3230-CR-028 C2-3230-ST-228 C2-3230-SL-064 C2-3230-ST-234 C2-3230-MD-038 C2-3230-ST-214 C2-3230-DV-038 VENDOR TEAR 3230 06317 LIT DUCTING VENDOR VENDOR MOTOR CONTROL SYSTEM CRUSHER LUBRICATION AND COOLING SYSTEM 3230 36383 II 3230 36383 XA 3230 36383 HS FAULT J/SP SIZE: MATERIAL: MOTOR: C2-3230-CV-057 CR-028 FEED CONVEYOR SIZE: C2-3230-DV-038 CR-028 FEED DIVERTER DRIVE SIZE: C2-3230-ST-234 CR-028 FEED CHUTE SIZE: C2-3230-ST-254 CR-028 DISCHARGE CHUTE SIZE: C2-3230-SL-064 CR-028 FEED CONVEYOR BELT SCALE SIZE: C2-3230-MD-038 CR-028 FEED METAL DETECTOR SIZE: C2-3230-ST-228 CR-028 FEED CONVEYOR HEAD CHUTE SIZE: C2-3230-ST-214 CR-028 DIVERTER CHUTE SIZE: C2-3230-CR-028 HPGR NO.8 P.O NO.: VENDOR DWG NO.: VENDOR: P.O NO.: VENDOR DWG NO.: VENDOR: 3230 06310 SE 3230 36382 II 3230 36382 XA 3230 36382 HS FAULT J/SP AFD 3230 36381 II 3230 36381 XA 3230 36381 HS FAULT J/SP AFD FC V1 3230 06381 II 3230 06381 XA 3230 06381 HS FAULT J/SP 3230 06308 XA P1 RHS LHS 3230 06315 B LE 3230 06315 A LAH 3230 06315 A LSH P1 3230 06315 A LE TER CRUSHER PRODUCT CR-028 DISCHARGE CONVEYOR, C2-3230-CV-027 1966 3200-25J-074 3230-LIC-06216 BIN LEVEL CONTROL, C2-3230-BN-038 2109 3200-25J-062 DUST HPGR DUST COLLECTOR, C2-3230-DC-192 2110 3200-25J-064 HPGR FEED HPGR CRUSHER FEEDER NO.8, C2-3230-FE-064 2111 3200-25J-062 CRUSHER FEED HPGR FEED CONTROL, C2-3230-FE-064 2113 3200-25J-062 T1 T3 T3 ES ES ES V V ES ES V ES V ES AG KM LT ISSUED FOR CLIENT REVIEW 23-Dec-11 B RP ISSUED FOR COMBINED REVIEW 23-Jun-11 A 12/23/2011 K. MUNDY A. GUNSON T. OH L. TAMELIN 1/3/2012 10:37:26 AM WBS: 3230 B PIPING AND INSTRUMENTATION DIAGRAM TERTIARY CRUSHING 3200-25J-063 HPGR NO. 8 LHS RHS A,B V V V V V V V V 3230 06304 ZAHH 3230 06305 ZAHH A,B A,B P1 P1 V 3230 06321 VE 3230 06321 VT 3230 06321 VI 3230 06322 LE 3230 06322 LSL 3230 06322 LA 3230 06323 TE 3230 06323 TI V V V V V L, P2 T3 H, P2 HH, P1 GEAR REDUCER H, P2 HH, P1 ES V VENDOR DUST HPGR DUST COLLECTOR, C2-3230-DC-193 4186 3200-25J-064 HPGR FEED BYPASS C2-3230-CV-027 4231 3200-25J-074 DUST HPGR DUST COLLECTOR, C2-3230-DC-191 4248 3200-25J-064 AFD
  • 69.
    M M M M M M MM 3230 06404 PDAH 3230 06402 PDAH 3230 06403 PDAH 3230 06487 HS ST/SP 3230 06485 II 3230 06488 XA 3230 06488 II 3230 06483 HS ST/SP 3230 06485 HS ST/SP 3230 06482 HS 3230 06495 XA 3230 06484 HS 3230 06493 II 3230 06486 HS 3230 06494 XA 3230 06492 HS 3230 06495 II 3230 06497 XA 3230 06493 HS ST/SP 3230 06496 II 3230 06489 II 3230 06496 XA 3230 06489 HS ST/SP 3230 06495 HS ST/SP 3230 06488 HS 3230 06483 XA 3230 06482 XA 3230 06484 II 3230 06498 XA 3230 06499 XA 3230 06497 II 3230 06494 HS 3230 06498 II 3230 06485 XA 3230 06496 HS 3230 06497 HS ST/SP 3230 06484 XA 3230 06486 II 3230 06482 II 3230 06492 II 3230 06487 XA 3230 06493 XA 3230 06499 HS ST/SP 3240 06498 HS 3230 06486 XA VENDOR 3230 06499 II 3230 06492 XA 3230 06487 II 3230 06483 II 3230 06494 II 3230 06489 XA DUST DUST CONTROL POINTS, CV-3230-CV-050 4181 3200-25J-049 DUST DUST CONTROL POINTS, C2-3230-CV-051 4182 3200-25J-051 DUST DUST CONTROL POINTS, C2-3230-CV-052 4183 3200-25J-053 HPGR DISCH. CONVEYOR NO.1, C2-3230-CV-017 4162 3200-25J-073 HPGR DISCH. CONVEYOR NO.1, C2-3230-CV-017 4163 3200-25J-073 DUST DUST CONTROL POINTS C2-3230-ST-184 4167 3200-25J-054 DUST DUST CONTROL POINTS, C2-3230-CV-053 4184 3200-25J-055 DUST COLLECTION POINTS 3300 3200-25J-076 DUST DUST CONTROL POINTS C2-3230-ST-216 1997 3200-25J-051 DUST DUST CONTROL POINTS C2-3230-ST-183 2053 3200-25J-052 DUST DUST CONTROL POINTS C2-3230-CR-015 4178 3200-25J-049 DUST DUST CONTROL POINTS C2-3230-CR-016 4179 3200-25J-051 DUST DUST CONTROL POINTS C2-3230-CR-017 4180 3200-25J-053 DUST DUST CONTROL POINTS C2-3230-ST-194 2126 3200-25J-062 DUST DUST CONTROL POINTS C2-3230-CR-018 4170 3200-25J-055 DUST DUST CONTROL POINTS C2-3230-ST-182 2025 3200-25J-050 DUST DUST CONTROL POINTS C2-3230-ST-181 1356 3200-25J-048 DUST CONTROL POINTS C2-3230-ST-191 2108 3200-25J-056 DUST CONTROL POINTS C2-3230-ST-193 2124 3200-25J-060 HPGR DISCH. CONVEYOR NO.1, C2-3230-CV-017 4155 3200-25J-073 DUST DUST CONTROL POINTS C2-3230-ST-217 2012 3200-25J-053 HPGR DISCH. CONVEYOR NO.1, C2-3230-CV-017 4158 3200-25J-073 DUST DUST CONTROL POINTS C2-3230-ST-225 2051 3200-25J-057 DUST CONTROL POINTS C2-3230-ST-192 2117 3200-25J-058 DUST DUST CONTROL POINTS C2-3230-ST-218 2033 3200-25J-055 DUST DUST CONTROL POINTS C2-3230-ST-227 2078 3200-25J-061 DUST DUST CONTROL POINTS C2-3230-ST-226 2067 3200-25J-059 DUST COLLECTOR POINTS 3254 DUST DUST CONTROL POINTS C2-3230-ST-228 2110 3200-25J-063 DUST DUST CONTROL POINTS C2-3230-ST-215 1826 3200-25J-049 VENDOR VENDOR FAULT ST/SP FAULT FAULT FAULT ST/SP FAULT FAULT FAULT ST/SP ST/SP FAULT FAULT FAULT FAULT ST/SP ST/SP FAULT FAULT FAULT FAULT ST/SP FAULT ST/SP SIZE: C2-3230-FA-193 HPGR DUST COLLECTOR FAN NO.7 SIZE: C2-3230-FA-192 HPGR DUST COLLECTOR FAN NO.6 SIZE: MATERIAL: MOTOR: C2-3230-DC-193 HPGR DUST COLLECTOR NO.7 C2-3230-DC-162 SIZE: MATERIAL: MOTOR: C2-3230-DC-079 HPGR DUST COLLECTOR NO.8 TO ATMOSPHERE C2-3230-FA-162 SIZE: MATERIAL: MOTOR: C2-3230-DC-192 HPGR DUST COLLECTOR NO.6 SIZE: MOTOR: C2-3230-ZV-079 HPGR DUST COLLECTOR ROTARY VALVE NO.8 SIZE: C2-3230-FA-191 HPGR DUST COLLECTOR FAN NO.5 SIZE: MATERIAL: MOTOR: C2-3230-DC-161 HPGR DUST COLLECTOR NO.1 C2-3230-ZV-079 SIZE: MATERIAL: MOTOR: C2-3230-DC-191 HPGR DUST COLLECTOR NO.5 C2-3230-FA-163 C2-3230-FA-102 C2-3230-FA-191 SIZE: MOTOR: C2-3230-ZV-192 HPGR DUST COLLECTOR ROTARY VALVE NO.6 SIZE: MOTOR: C2-3230-ZV-191 HPGR DUST COLLECTOR ROTARY VALVE NO.5 TO ATMOSPHERE TO ATMOSPHERE SIZE: MOTOR: C2-3230-ZV-193 HPGR DUST COLLECTOR ROTARY VALVE NO.7 SIZE: C2-3230-FA-161 HPGR DUST COLLECTOR FAN NO.1 C2-3230-ZV-193 C2-3230-DC-191 SIZE: C2-3230-FA-102 HPGR DUST COLLECTOR FAN NO.8 C2-3230-DC-192 SIZE: C2-3230-FA-041 HPGR DUST COLLECTOR FAN NO.4 SIZE: C2-3230-FA-163 HPGR DUST COLLECTOR FAN NO.3 C2-3230-ZV-192 C2-3230-DC-041 C2-3230-ZV-191 TO ATMOSPHERE C2-3230-FA-041 AG KM LT ISSUED FOR CLIENT REVIEW 23-Dec-11 B RP ISSUED FOR COMBINED REVIEW 13-Jul-11 A 12/23/2011 K. MUNDY A. GUNSON T. OH L. TAMELIN 12/23/2011 3:06:46 PM WBS: 3230 B PIPING AND INSTRUMENTATION DIAGRAM TERTIARY CRUSHING 3200-25J-064 TERTIARY CRUSHER PLANT DUST COLLECTION SIZE: C2-3230-FA-162 HPGR DUST COLLECTOR FAN NO.2 SIZE: MATERIAL: MOTOR: C2-3230-DC-041 HPGR DUST COLLECTOR NO.4 C2-3230-DC-161 SIZE: MATERIAL: MOTOR: C2-3230-DC-163 HPGR DUST COLLECTOR NO.3 SIZE: MATERIAL: MOTOR: C2-3230-DC-162 HPGR DUST COLLECTOR NO.2 SIZE: MOTOR: C2-3230-ZV-161 HPGR DUST COLLECTOR ROTARY VALVE NO.1 SIZE: MOTOR: C2-3230-ZV-086 HPGR DUST COLLECTOR ROTARY VALVE NO.4 SIZE: MOTOR: C2-3230-ZV-162 HPGR DUST COLLECTOR ROTARY VALVE NO.2 C2-3230-ZV-163 C2-3230-ZV-162 C2-3230-ZV-161 C2-3230-DC-193 TO ATMOSPHERE C2-3230-FA-193 C2-3230-DC-163 C2-3230-DC-079 TO ATMOSPHERE TO ATMOSPHERE C2-3230-FA-192 SIZE: MOTOR: C2-3230-ZV-163 HPGR DUST COLLECTOR ROTARY VALVE NO.3 C2-3230-ZV-086 TO ATMOSPHERE C2-3230-FA-161 D 4 F B A 3 2 1 5 6 8 E 7 C REV. APPROVED CHK. DES. REV. DATE REVISION DESCRIPTION CLIENT LEAD ENGINEER SCALE DRAWING NUMBER CHECK DESIGN CHECK DRAWING DESIGNED BY DRAWN BY APPROVAL DATE APPROVAL DATE APPROVED CHK. DES. REV. DATE REVISION DESCRIPTION REFERENCE DRAWING No. 1:100 0 1:200 5m 10m 0 5m 10m 15m 20m 1:500 10m 0 20m 30m 40m 50m 1:1000 0 100m 50m 1:20 0 0.5m 1m 1.5m 2m 0 1:25 0.5m 1m 1.5m 1:33 1/3 2.5m 2m 0 1m 2m 3m 0 1:50 1m 2m 3m 4m 5m CAD FILE NAME: P:0CAD000SPEM** MODEL UPDATED: DWG. FILE UPDATED: MANUAL CHANGES MADE: YES NO YES NO YES NO PROJECT MANAGER ENGINEERING MANAGER AREA PROJECTENGINEER REFERENCE DRAWINGS SAFETY SHARE: APPROVAL DATE CONTRACT NO. SAFETY SHARE : BA6CVA1.IGR NOTICE: THIS DRAWING HAS NOT BEEN PUBLISHED AND IS THE SOLE PROPERTY OF FLUOR AND IS LENT TO THE BORROWER FOR THEIR CONFIDENTIAL USE ONLY, AND IN CONSIDERATION OF THE LOAN OF THIS DRAWING, THE BORROWER PROMISES AND AGREES TO RETURN IT UPON REQUEST AND AGREES THAT IT WILL NOT BE REPRODUCED, COPIED LENT OR OTHERWISE DISPOSED OF DIRECTLY OR INDIRECTLY, NOR USED FOR ANY OTHER PURPOSE OTHER THAN WHICH IT IS FURNISHED. NONE Apr 2011 240K-C2- 3230 06401 PDAH VENDOR 3230 06414 PDAH VENDOR DUST DUST CONTROL POINTS C2-3230-CR-027 4185 3200-25J-061 DUST DUST CONTROL POINTS C2-3230-CR-028 4186 3200-25J-063 DUST DUST CONTROL POINTS C2-3230-CR-025 4187 3200-25J-057 3230 06413 PDAH VENDOR DUST DUST CONTROL POINTS C2-3230-CR-026 4190 3200-25J-059 VENDOR DUST DUST CONTROL POINTS C2-3230-CV-054 4194 3200-25J-057 DUST DUST CONTROL POINTS C2-3230-CV-056 4195 3200-25J-061 DUST DUST CONTROL POINTS C2-3230-CV-055 4197 3200-25J-059 VENDOR DUST DUST CONTROL POINTS C2-3230-CV-057 4248 3200-25J-063 3230 06412 PDAH 3230 06411 PDAH HPGR DISCH. CONVEYOR NO.2, C2-3230-CV-018 4224 3200-25J-074 HPGR DISCH. CONVEYOR NO.2, C2-3230-CV-018 4225 3200-25J-074 HPGR DISCH. CONVEYOR NO.2, C2-3230-CV-018 4226 3200-25J-074 HPGR DISCH. CONVEYOR NO.2, C2-3230-CV-018 4227 3200-25J-074
  • 70.
    D 4 F B A 3 2 1 5 68 E 7 C REV. APPROVED CHK. DES. REV. DATE REVISION DESCRIPTION CLIENT LEAD ENGINEER SCALE DRAWING NUMBER CHECK DESIGN CHECK DRAWING DESIGNED BY DRAWN BY APPROVAL DATE APPROVAL DATE APPROVED CHK. DES. REV. DATE REVISION DESCRIPTION REFERENCE DRAWING No. 1:100 0 1:200 5m 10m 0 5m 10m 15m 20m 1:500 10m 0 20m 30m 40m 50m 1:1000 0 100m 50m 1:20 0 0.5m 1m 1.5m 2m 0 1:25 0.5m 1m 1.5m 1:33 1/3 2.5m 2m 0 1m 2m 3m 0 1:50 1m 2m 3m 4m 5m CAD FILE NAME: P:0CAD000SPEM** MODEL UPDATED: DWG. FILE UPDATED: MANUAL CHANGES MADE: YES NO YES NO YES NO PROJECT MANAGER ENGINEERING MANAGER AREA PROJECTENGINEER REFERENCE DRAWINGS SAFETY SHARE: APPROVAL DATE CONTRACT NO. SAFETY SHARE : BA6CVA1.IGR NOTICE: THIS DRAWING HAS NOT BEEN PUBLISHED AND IS THE SOLE PROPERTY OF FLUOR AND IS LENT TO THE BORROWER FOR THEIR CONFIDENTIAL USE ONLY, AND IN CONSIDERATION OF THE LOAN OF THIS DRAWING, THE BORROWER PROMISES AND AGREES TO RETURN IT UPON REQUEST AND AGREES THAT IT WILL NOT BE REPRODUCED, COPIED LENT OR OTHERWISE DISPOSED OF DIRECTLY OR INDIRECTLY, NOR USED FOR ANY OTHER PURPOSE OTHER THAN WHICH IT IS FURNISHED. NONE Apr 2011 240K-C2- AG KM LT ISSUED FOR CLIENT REVIEW 23-Dec-11 B RP ISSUED FOR COMBINED REVIEW 19-Jul-11 A 12/23/2011 K.MUNDY A. GUNSON T. OH L. TAMELIN 12/23/2011 3:07:26 PM WBS: 3230 B PIPING AND INSTRUMENTATION DIAGRAM TERTIARY CRUSHING 3200-25J-065 HPGR NO. 1 LUBE SYSTEM 3230 36511 XS 3230 36511 XL 3230 36512 XS 3230 36512 XL 3230 36513 LAH 3230 36514 PAH 3230 36515 XS 3230 36515 XL 3230 36516 SI 3230 36517 SI 3230 36518 VI 3230 36519 LAHH 3230 36501 TI 3230 36502 TI 3230 36503 TI 3230 36504 TI 3230 36505 ZA 3230 36506 ZA 3230 36507 ZA 3230 36508 ZA 3230 36509 ZI 3230 36510 ZI P2 P2 P2 H, P2 HH, P2 H, P2 H, P2 H, P2 GUIDE RAIL LUBE BEARING LUBE LUBE OIL TANK BEARING LUBE BEARING LUBE SYSTEM MAIN FIXED ROOL MOVABLE ROLL GEAR BOX FEED MOVABLE ROLL LEFT FIXED ROLL LEFT MOVABLE ROLL RIGHT FIXED ROLL RIGHT MOVABLE ROLL LEFT MOVABLE ROLL LEFT MOVABLE ROLL LEFT MOVABLE ROLL RIGHT MOVABLE ROLL RIGHT MOVABLE ROLL RIGHT T1 T1 3230 36714 PA 3230 36719 JDAH 3230 36717 SI 3230 36701 TI P2 H, P2 3230 36702 TI H, P2 3230 36703 TI H, P2 3230 36704 TI H, P2 3230 36705 TI H, P2 3230 36706 TI H, P2 3230 36707 TI H, P2 3230 36708 ZA 3230 36709 ZAH 3230 36710 XL 3230 36710 XS 3230 36713 PDAH LUBE OIL PUMP LUBE OIL PRESSURE FIXED ROLL MOTOR FIXED/MOVABLE ROLL POWER MOTOR SPEED OIL SUMP MOTOR BEARING GEAR BOX BEARING MOTOR BEARING MOTOR WINDING MOTOR WINDING MOTOR WINDING MOTOR COUPLING MOTOR COUPLING GEAR LUBE OIL LUBE OIL FILTER 3230 36781 II 3230 36781 XA 3230 36781 HS FAULT J/SP 3230 36782 II 3230 36782 XA 3230 36782 HS FAULT J/SP T1 T1 3230 36614 PA 3230 36618 ZI 3230 36619 ZI 3230 36601 TI H, P2 3230 36602 TI H, P2 3230 36603 TI H, P2 3230 36604 TI H, P2 3230 36605 TI H, P2 3230 36606 TI H, P2 3230 36607 TI H, P2 3230 36608 ZAH 3230 36609 ZAH 3230 36610 XL 3230 36610 XS 3230 36613 PDAH LUBE OIL PUMP LUBE OIL PRESSURE FIXED ROLL MOTOR MOVABLE ROLL LEFT POSITION MOTOR SPEED OIL SUMP MOTOR BEARING GEAR BOX BEARING MOTOR BEARING MOTOR WINDING MOTOR WINDING MOTOR WINDING MOTOR COUPLING MOTOR COUPLING GEAR LUBE OIL LUBE OIL FILTER 3230 36681 II 3230 36681 XA 3230 36681 HS FAULT J/SP 3230 36682 II 3230 36682 XA 3230 36682 HS FAULT J/SP T1 T1 3230 36814 PI 3230 36815 PI 3230 36816 XS 3230 36816 XL 3230 36818 XS 3230 36818 XL 3230 36817 PAH 3230 36819 PDAH 3230 36813 PDAH 3230 36801 LAL 3230 36802 LAH 3230 36805 XL 3230 36805 XS 3230 36803 XL 3230 36803 XS 3230 36804 XL 3230 36804 XS 3230 36806 XL 3230 36806 XS 3230 36807 XL 3230 36807 XS 3230 36808 XL 3230 36808 XS 3230 36809 XL 3230 36809 XS 3230 36810 TI 3230 36617 SI MOVABLE ROLL RIGHT POSITION H, P2 P2 P2 P2 P2 H, P2 H, P2 P2 A-B HYDRAULIC SYST. LEFT HYDRAULIC SYST. RIGHT HYDRAULIC PUMP A HYDRAULIC PUMP B SOLENOID Y2 OIL FILTER SOLENOID Y1 OIL FILTER LEFT OIL FILTER RIGHT OIL TANK OIL TANK SOLENOID Y4 BLOCK VALVE SOLENOID Y8 SOLENOID Y11 SOLENOID Y3 SOLENOID Y9 BLOCK VALVE HYDRAULIC OIL TEMP. 3230 36882 II 3230 36882 XA 3230 36882 HS FAULT J/SP 3230 36881 II 3230 36881 XA FAULT 3230 36881 HS J/SP INSTRUMENT AIR 3079 3900-25J-022 3230-AI-1118-G1A-1/2"-N 1/2"x1/4" 3"x2" CR-015 ROLL CONTROLS CR-015 FIXED ROLL DRIVE CONTROLS CR-015 MOVABLE ROLL DRIVE CONTROLS CR-015 HYDRAULIC SYSTEM P.O NO.: VENDOR DWG NO.: VENDOR: P.O NO.: VENDOR DWG NO.: VENDOR: P.O NO.: VENDOR DWG NO.: VENDOR: P.O NO.: VENDOR DWG NO.: VENDOR: CR-015 ROLL CONTROLS CR-015 MOVABLE ROLL DRIVE CONTROLS CR-015 FIXED ROLL DRIVE CONTROLS CR-015 HYDRAULIC SYSTEM AFD - MOVABLE ROLL AFD - FIXED ROLL HOSE BY VENDOR 32 MM ID HOSE BY VENDOR 32 MM ID HOSE BY VENDOR 32 MM ID HOSE BY VENDOR 32 MM ID CLOSED LOOP CWS HEADER 3082 3200-25J-083 3230 36825 XA COMMON ALARM 3230 36625 XA COMMON ALARM 3230 36725 XA COMMON ALARM 3230 36525 XA COMMON ALARM H, P2 CLOSED LOOP CWR HEADER 3078 3200-25J-084 CLOSED LOOP CWS HEADER 4007 3200-25J-083 CLOSED LOOP CWS HEADER 4008 3200-25J-083 CLOSED LOOP CWS HEADER 4009 3200-25J-083 CLOSED LOOP CWS HEADER 4010 3200-25J-083 CLOSED LOOP CWS HEADER 4011 3200-25J-083 CLOSED LOOP CWR HEADER 4012 3200-25J-084 CLOSED LOOP CWR HEADER 4013 3200-25J-084 CLOSED LOOP CWR HEADER 4014 3200-25J-084 CLOSED LOOP CWR HEADER 4015 3200-25J-084 CLOSED LOOP CWR HEADER 4016 3200-25J-084 3200-WF-1246-C1A-1-1/2"-N 3200-WF-1248-C1A-1-1/2"-N 3200-WF-1247-C1A-2"-N 3200-WF-1182-C1A-3"-N 3200-WF-1245-C1A-2"-N 3200-WF-1244-C1A-2"-N 3230-WF-1252-C1A-1-1/2"-N 3230-WF-1255-C1A-1-1/2"-N 3230-WF-1251-C1A-2"-N 3230-WF-1250-C1A-2"-N 3230-WF-1253-C1A-2"-N 3230-WF-1254-C1A-2"-N
  • 71.
    D 4 F B A 3 2 1 5 68 E 7 C REV. APPROVED CHK. DES. REV. DATE REVISION DESCRIPTION CLIENT LEAD ENGINEER SCALE DRAWING NUMBER CHECK DESIGN CHECK DRAWING DESIGNED BY DRAWN BY APPROVAL DATE APPROVAL DATE APPROVED CHK. DES. REV. DATE REVISION DESCRIPTION REFERENCE DRAWING No. 1:100 0 1:200 5m 10m 0 5m 10m 15m 20m 1:500 10m 0 20m 30m 40m 50m 1:1000 0 100m 50m 1:20 0 0.5m 1m 1.5m 2m 0 1:25 0.5m 1m 1.5m 1:33 1/3 2.5m 2m 0 1m 2m 3m 0 1:50 1m 2m 3m 4m 5m CAD FILE NAME: P:0CAD000SPEM** MODEL UPDATED: DWG. FILE UPDATED: MANUAL CHANGES MADE: YES NO YES NO YES NO PROJECT MANAGER ENGINEERING MANAGER AREA PROJECTENGINEER REFERENCE DRAWINGS SAFETY SHARE: APPROVAL DATE CONTRACT NO. SAFETY SHARE : BA6CVA1.IGR NOTICE: THIS DRAWING HAS NOT BEEN PUBLISHED AND IS THE SOLE PROPERTY OF FLUOR AND IS LENT TO THE BORROWER FOR THEIR CONFIDENTIAL USE ONLY, AND IN CONSIDERATION OF THE LOAN OF THIS DRAWING, THE BORROWER PROMISES AND AGREES TO RETURN IT UPON REQUEST AND AGREES THAT IT WILL NOT BE REPRODUCED, COPIED LENT OR OTHERWISE DISPOSED OF DIRECTLY OR INDIRECTLY, NOR USED FOR ANY OTHER PURPOSE OTHER THAN WHICH IT IS FURNISHED. NONE Apr 2011 240K-C2- AG KM LT ISSUED FOR CLIENT REVIEW 23-Dec-11 B RP ISSUED FOR COMBINED REVIEW 19-Jul-11 A 12/23/2011 K. MUNDY A. GUNSON T. OH L. TAMELIN 12/23/2011 3:08:22 PM WBS: 3230 B PIPING AND INSTRUMENTATION DIAGRAM TERTIARY CRUSHING 3200-25J-066 HPGR NO. 2 LUBE SYSTEM 3230 36911 XS 3230 36911 XL 3230 36912 XS 3230 36912 XL 3230 36913 LAH 3230 36914 PAH 3230 36915 XS 3230 36915 XL 3230 36916 SI 3230 36917 SI 3230 36918 VI 3230 36919 LAHH 3230 36901 TI 3230 36902 TI 3230 36903 TI 3230 36904 TI 3230 36905 ZA 3230 36906 ZA 3230 36907 ZA 3230 36908 ZA 3230 36909 ZI 3230 36910 ZI P2 P2 P2 H, P2 HH, P2 H, P2 H, P2 H, P2 H, P2 GUIDE RAIL LUBE BEARING LUBE LUBE OIL TANK BEARING LUBE BEARING LUBE SYSTEM MAIN FIXED ROOL MOVABLE ROLL GEAR BOX FEED MOVABLE ROLL LEFT FIXED ROLL LEFT MOVABLE ROLL RIGHT FIXED ROLL RIGHT MOVABLE ROLL LEFT MOVABLE ROLL LEFT MOVABLE ROLL LEFT MOVABLE ROLL RIGHT MOVABLE ROLL RIGHT MOVABLE ROLL RIGHT T1 T1 3230 37114 PA 3230 37119 JDAH 3230 37117 SI 3230 37101 TI P2 H, P2 3230 37102 TI H, P2 3230 37103 TI H, P2 3230 37104 TI H, P2 3230 37105 TI H, P2 3230 37106 TI H, P2 3230 37107 TI H, P2 3230 37108 ZAH 3230 37109 ZAH 3230 37110 XL 3230 37110 XS 3230 37113 PDA LUBE OIL PUMP LUBE OIL PRESSURE FIXED ROLL MOTOR FIXED/MOVABLE ROLL POWER MOTOR SPEED OIL SUMP MOTOR BEARING GEAR BOX BEARING MOTOR BEARING MOTOR WINDING MOTOR WINDING MOTOR WINDING MOTOR COUPLING MOTOR COUPLING GEAR LUBE OIL LUBE OIL FILTER 3230 37181 II 3230 37181 XA 3230 37181 HS FAULT J/SP 3230 37182 II 3230 37182 XA 3230 06682 HS FAULT J/SP T1 T1 3230 37014 PA 3230 37018 ZI 3230 37019 ZI 3230 37001 TI H, P2 3230 37002 TI H, P2 3230 37003 TI H, P2 3230 37004 TI H, P2 3230 37005 TI H, P2 3230 37006 TI H, P2 3230 37007 TI H, P2 3230 37008 ZAH 3230 37009 ZAH 3230 37010 XL 3230 37010 XS 3230 37013 PDAH LUBE OIL PUMP LUBE OIL PRESSURE FIXED ROLL MOTOR MOVABLE ROLL LEFT POSITION MOTOR SPEED OIL SUMP MOTOR BEARING GEAR BOX BEARING MOTOR BEARING MOTOR WINDING MOTOR WINDING MOTOR WINDING MOTOR COUPLING MOTOR COUPLING GEAR LUBE OIL LUBE OIL FILTER 3230 37081 II 3230 37081 XA 3230 37081 HS FAULT J/SP 3230 37082 II 3230 37082 XA 3230 37082 HS FAULT J/SP T1 T1 3230 37214 PI 3230 37215 PI 3230 37216 XS 3230 37216 XL 3230 37218 XS 3230 37218 XL 3230 37217 PA 3230 37219 PDA 3230 37213 PDA 3230 37201 LAL 3230 37202 LAH 3230 37205 XL 3230 37205 XS 3230 37203 XL 3230 37203 XS 3230 37204 XL 3230 37204 XS 3230 37206 XL 3230 37206 XS 3230 37207 XL 3230 37207 XS 3230 37208 XL 3230 37208 XS 3230 37209 XL 3230 37209 XS 3230 37210 TI 3230 37017 SI MOVABLE ROLL RIGHT POSITION H, P2 P2 P2 P2 P2 H, P2 H, P2 A-B HYDRAULIC SYST. LEFT HYDRAULIC SYST. RIGHT HYDRAULIC PUMP A HYDRAULIC PUMP B SOLENOID Y2 OIL FILTER SOLENOID Y1 OIL FILTER LEFT OIL FILTER RIGHT OIL TANK OIL TANK SOLENOID Y4 BLOCK VALVE SOLENOID Y8 SOLENOID Y11 SOLENOID Y3 SOLENOID Y9 BLOCK VALVE HYDRAULIC OIL TEMP. 3230 37282 II 3230 37282 XA 3230 37282 HS FAULT J/SP 3230 37281 II 3230 37281 XA FAULT 3230 37281 HS J/SP 3230-AI-1119-G1A-1/2"-N 1/2"x1/4" 3"x2" CR-016 ROLL CONTROLS CR-016 FIXED ROLL DRIVE CONTROLS CR-016 MOVABLE ROLL DRIVE CONTROLS CR-016 HYDRAULIC SYSTEM P.O NO.: VENDOR DWG NO.: VENDOR: P.O NO.: VENDOR DWG NO.: VENDOR: P.O NO.: VENDOR DWG NO.: VENDOR: P.O NO.: VENDOR DWG NO.: VENDOR: CR-016 ROLL CONTROLS CR-016 MOVABLE ROLL DRIVE CONTROLS CR-016 FIXED ROLL DRIVE CONTROLS CR-016 HYDRAULIC SYSTEM AFD - MOVABLE ROLL AFD - FIXED ROLL HOSE BY VENDOR 32 MM ID HOSE BY VENDOR 32 MM ID HOSE BY VENDOR 32 MM ID HOSE BY VENDOR 32 MM ID INSTRUMENT AIR 3106 3900-25J-022 CLOSED LOOP CWS HEADER 3107 3200-25J-083 P2 3230 37225 XA COMMOM ALARM 3230 37025 XA COMMOM ALARM 3230 37125 XA COMMOM ALARM 3230 36925 XA COMMOM ALARM CLOSED WATER CWR HEADER 3108 3200-25J-084 CLOSED LOOP CWS HEADER 4020 3200-25J-083 CLOSED LOOP CWS HEADER 4022 3200-25J-083 CLOSED LOOP CWS HEADER 4019 3200-25J-083 CLOSED LOOP CWS HEADER 4018 3200-25J-083 CLOSED LOOP CWS HEADER 4017 3200-25J-083 CLOSED LOOP CWR HEADER 4023 3200-25J-084 CLOSED LOOP CWR HEADER 4026 3200-25J-084 CLOSED LOOP CWR HEADER 4025 3200-25J-084 CLOSED LOOP CWR HEADER 4024 3200-25J-084 CLOSED LOOP CWR HEADER 4028 3200-25J-084 3200-WF-1256-C1A-2"-N 3200-WF-1257-C1A-2"-N 3200-WF-1183-C1A-3"-N 3200-WF-1259-C1A-2"-N 3200-WF-1260-C1A-1-1/2"-N 3200-WF-1258-C1A-1-1/2"-N 3230-WF-1264-C1A-1-1/2"-N 3230-WF-1267-C1A-1-1/2"-N 3230-WF-1263-C1A-2"-N 3230-WF-1262-C1A-2"-N 3230-WF-1265-C1A-2"-N 3230-WF-1266-C1A-2"-N
  • 72.
    D 4 F B A 3 2 1 5 68 E 7 C REV. APPROVED CHK. DES. REV. DATE REVISION DESCRIPTION CLIENT LEAD ENGINEER SCALE DRAWING NUMBER CHECK DESIGN CHECK DRAWING DESIGNED BY DRAWN BY APPROVAL DATE APPROVAL DATE APPROVED CHK. DES. REV. DATE REVISION DESCRIPTION REFERENCE DRAWING No. 1:100 0 1:200 5m 10m 0 5m 10m 15m 20m 1:500 10m 0 20m 30m 40m 50m 1:1000 0 100m 50m 1:20 0 0.5m 1m 1.5m 2m 0 1:25 0.5m 1m 1.5m 1:33 1/3 2.5m 2m 0 1m 2m 3m 0 1:50 1m 2m 3m 4m 5m CAD FILE NAME: P:0CAD000SPEM** MODEL UPDATED: DWG. FILE UPDATED: MANUAL CHANGES MADE: YES NO YES NO YES NO PROJECT MANAGER ENGINEERING MANAGER AREA PROJECTENGINEER REFERENCE DRAWINGS SAFETY SHARE: APPROVAL DATE CONTRACT NO. SAFETY SHARE : BA6CVA1.IGR NOTICE: THIS DRAWING HAS NOT BEEN PUBLISHED AND IS THE SOLE PROPERTY OF FLUOR AND IS LENT TO THE BORROWER FOR THEIR CONFIDENTIAL USE ONLY, AND IN CONSIDERATION OF THE LOAN OF THIS DRAWING, THE BORROWER PROMISES AND AGREES TO RETURN IT UPON REQUEST AND AGREES THAT IT WILL NOT BE REPRODUCED, COPIED LENT OR OTHERWISE DISPOSED OF DIRECTLY OR INDIRECTLY, NOR USED FOR ANY OTHER PURPOSE OTHER THAN WHICH IT IS FURNISHED. NONE Apr 2011 240K-C2- AG KM LT ISSUED FOR CLIENT REVIEW 23-Dec-11 B RP ISSUED FOR COMBINED REVIEW 19-Jul-11 A 12/23/2011 K.MUNDY A.GUNSON T. OH L.TAMELIN 12/21/2011 11:42:51 AM WBS: 3230 B PIPING AND INSTRUMENTATION DIAGRAM TERTIARY CRUSHING 3200-25J-067 HPGR NO. 3 LUBE SYSTEM 3230 37311 XS 3230 37311 XL 3230 37312 XS 3230 37312 XL 3230 37313 LAH 3230 37314 PAH 3230 37315 XS 3230 37315 XL 3230 37316 SI 3230 37317 SI 3230 37318 VI 3230 37319 LAH 3230 37301 TI 3230 37302 TI 3230 37303 TI 3230 37304 TI 3230 37305 ZA 3230 37306 ZA 3230 37307 ZA 3230 37308 ZA 3230 37309 ZI 3230 37310 ZI P2 P2 P2 H, P2 HH, P2 H, P2 H, P2 H, P2 GUIDE RAIL LUBE BEARING LUBE LUBE OIL TANK BEARING LUBE BEARING LUBE SYSTEM MAIN FIXED ROOL MOVABLE ROLL GEAR BOX FEED MOVABLE ROLL LEFT FIXED ROLL LEFT MOVABLE ROLL RIGHT FIXED ROLL RIGHT MOVABLE ROLL LEFT MOVABLE ROLL LEFT MOVABLE ROLL LEFT MOVABLE ROLL RIGHT MOVABLE ROLL RIGHT MOVABLE ROLL RIGHT T1 T1 3230 37514 PA 3230 37519 JDAH 3230 37517 SI 3230 37501 TI P2 H, P2 3230 37502 TI H, P2 3230 37503 TI H, P2 3230 37504 TI H, P2 3230 37505 TI H, P2 3230 37506 TI H, P2 3230 37507 TI H, P2 3230 37508 ZAH 3230 37509 ZAH 3230 37510 XL 3230 37510 XS 3230 37513 PDAH LUBE OIL PUMP LUBE OIL PRESSURE FIXED ROLL MOTOR FIXED/MOVABLE ROLL POWER MOTOR SPEED OIL SUMP MOTOR BEARING GEAR BOX BEARING MOTOR BEARING MOTOR WINDING MOTOR WINDING MOTOR WINDING MOTOR COUPLING MOTOR COUPLING GEAR LUBE OIL LUBE OIL FILTER 3230 37581 II 3230 37581 XA 3230 37581 HS FAULT J/SP 3230 37582 II 3230 37582 XA 3230 37582 HS FAULT J/SP T1 T1 3230 37414 PA 3230 37418 ZI 3230 37419 ZI 3230 37401 TI H, P2 3230 37402 TI H, P2 3230 37403 TI H, P2 3230 37404 TI H, P2 3230 37405 TI H, P2 3230 37406 TI H, P2 3230 37407 TI H, P2 3230 37408 ZAH 3230 37409 ZAH 3230 37410 XL 3230 37410 XS 3230 37413 PDAH LUBE OIL PUMP LUBE OIL PRESSURE FIXED ROLL MOTOR MOVABLE ROLL LEFT POSITION MOTOR SPEED OIL SUMP MOTOR BEARING GEAR BOX BEARING MOTOR BEARING MOTOR WINDING MOTOR WINDING MOTOR WINDING MOTOR COUPLING MOTOR COUPLING GEAR LUBE OIL LUBE OIL FILTER 3230 37481 II 3230 37481 XA 3230 37481 HS FAULT J/SP 3230 37482 II 3230 37482 XA 3230 37482 HS FAULT J/SP T1 T1 3230 37614 PI 3230 37615 PI 3230 37616 XS 3230 37616 XL 3230 37618 XS 3230 37618 XL 3230 37617 PAH 3230 37619 PDAH 3230 37613 PDAH 3230 37601 LAL 3230 37602 LAH 3230 37605 XL 3230 37605 XS 3230 37603 XL 3230 37603 XS 3230 37604 XL 3230 37604 XS 3230 37606 XL 3230 37606 XS 3230 37607 XL 3230 37607 XS 3230 37608 XL 3230 37608 XS 3230 37609 XL 3230 37609 XS 3230 37610 TI 3230 37417 SI MOVABLE ROLL RIGHT POSITION H, P2 P2 P2 P2 P2 H, P2 H, P2 A-B HYDRAULIC SYST. LEFT HYDRAULIC SYST. RIGHT HYDRAULIC PUMP A HYDRAULIC PUMP B SOLENOID Y2 OIL FILTER SOLENOID Y1 OIL FILTER LEFT OIL FILTER RIGHT OIL TANK OIL TANK SOLENOID Y4 BLOCK VALVE SOLENOID Y8 SOLENOID Y11 SOLENOID Y3 SOLENOID Y9 BLOCK VALVE HYDRAULIC OIL TEMP. 3230 37682 II 3230 37682 XA 3230 37682 HS FAULT J/SP 3230 37681 II 3230 37681 XA FAULT 3230 37681 HS J/SP 3230-AI-1120-G1A-1/2"-N 1/2"x1/4" 3"x2" CR-017 ROLL CONTROLS CR-017 FIXED ROLL DRIVE CONTROLS CR-017 MOVABLE ROLL DRIVE CONTROLS CR-017 HYDRAULIC SYSTEM P.O NO.: VENDOR DWG NO.: VENDOR: P.O NO.: VENDOR DWG NO.: VENDOR: P.O NO.: VENDOR DWG NO.: VENDOR: P.O NO.: VENDOR DWG NO.: VENDOR: CR-017 ROLL CONTROLS CR-017 MOVABLE ROLL DRIVE CONTROLS CR-017 FIXED ROLL DRIVE CONTROLS CR-017 HYDRAULIC SYSTEM AFD - MOVABLE ROLL AFD - FIXED ROLL HOSE BY VENDOR 32 MM ID HOSE BY VENDOR 32 MM ID HOSE BY VENDOR 32 MM ID HOSE BY VENDOR 32 MM ID INSTRUMENT AIR 3109 3900-25J-022 CLOSED LOOP CWS HEADER 3110 3200-25J-083 P2 3230 37625 XA 3230 37425 XA COMMON ALARM COMMON ALARM 3230 37525 XA COMMON ALARM H, P2 3230 37325 XA COMMON ALARM CLOSED LOOP CWR HEADER 3111 3200-25J-084 CLOSED LOOP CWS HEADER 4032 3200-25J-083 CLOSED LOOP CWS HEADER 4031 3200-25J-083 CLOSED LOOP CWS HEADER 4033 3200-25J-083 CLOSED LOOP CWS HEADER 4036 3200-25J-083 CLOSED LOOP CWS HEADER 4029 3200-25J-083 CLOSED LOOP CWR HEADER 4035 3200-25J-084 CLOSED LOOP CWR HEADER 4038 3200-25J-084 CLOSED LOOP CWR HEADER 4034 3200-25J-084 CLOSED LOOP CWR HEADER 4030 3200-25J-084 CLOSED LOOP CWR HEADER 4037 3200-25J-084 3200-WF-1270-C1A-1-1/2"-N 3200-WF-1272-C1A-1-1/2"-N 3200-WF-1271-C1A-2"-N 3200-WF-1184-C1A-3"-N 3200-WF-1269-C1A-2"-N 3200-WF-1268-C1A-2"-N 3230-WF-1276-C1A-1-1/2"-N 3230-WF-1279-C1A-1-1/2"-N 3230-WF-1275-C1A-2"-N 3230-WF-1277-C1A-2"-N 3230-WF-1278-C1A-2"-N 3230-WF-1274-C1A-2"-N
  • 73.
    D 4 F B A 3 2 1 5 68 E 7 C REV. APPROVED CHK. DES. REV. DATE REVISION DESCRIPTION CLIENT LEAD ENGINEER SCALE DRAWING NUMBER CHECK DESIGN CHECK DRAWING DESIGNED BY DRAWN BY APPROVAL DATE APPROVAL DATE APPROVED CHK. DES. REV. DATE REVISION DESCRIPTION REFERENCE DRAWING No. 1:100 0 1:200 5m 10m 0 5m 10m 15m 20m 1:500 10m 0 20m 30m 40m 50m 1:1000 0 100m 50m 1:20 0 0.5m 1m 1.5m 2m 0 1:25 0.5m 1m 1.5m 1:33 1/3 2.5m 2m 0 1m 2m 3m 0 1:50 1m 2m 3m 4m 5m CAD FILE NAME: P:0CAD000SPEM** MODEL UPDATED: DWG. FILE UPDATED: MANUAL CHANGES MADE: YES NO YES NO YES NO PROJECT MANAGER ENGINEERING MANAGER AREA PROJECTENGINEER REFERENCE DRAWINGS SAFETY SHARE: APPROVAL DATE CONTRACT NO. SAFETY SHARE : BA6CVA1.IGR NOTICE: THIS DRAWING HAS NOT BEEN PUBLISHED AND IS THE SOLE PROPERTY OF FLUOR AND IS LENT TO THE BORROWER FOR THEIR CONFIDENTIAL USE ONLY, AND IN CONSIDERATION OF THE LOAN OF THIS DRAWING, THE BORROWER PROMISES AND AGREES TO RETURN IT UPON REQUEST AND AGREES THAT IT WILL NOT BE REPRODUCED, COPIED LENT OR OTHERWISE DISPOSED OF DIRECTLY OR INDIRECTLY, NOR USED FOR ANY OTHER PURPOSE OTHER THAN WHICH IT IS FURNISHED. NONE Apr 2011 240K-C2- 3230 37711 XS 3230 37711 XL 3230 37712 XS 3230 37712 XL 3230 37713 LAH 3230 37714 PAH 3230 37715 XS 3230 37715 XL 3230 37716 SI 3230 37717 SI 3230 37718 VI 3230 37719 LAHH 3230 37701 TI 3230 37702 TI 3230 37703 TI 3230 37704 TI 3230 37705 ZA 3230 37706 ZA 3230 37707 ZA 3230 37708 ZA 3230 37709 ZI 3230 37710 ZI P2 P2 P2 H, P2 HH, P2 H, P2 H, P2 H, P2 GUIDE RAIL LUBE BEARING LUBE LUBE OIL TANK BEARING LUBE BEARING LUBE SYSTEM MAIN FIXED ROOL MOVABLE ROLL GEAR BOX FEED MOVABLE ROLL LEFT FIXED ROLL LEFT MOVABLE ROLL RIGHT FIXED ROLL RIGHT MOVABLE ROLL LEFT MOVABLE ROLL LEFT MOVABLE ROLL LEFT MOVABLE ROLL RIGHT MOVABLE ROLL RIGHT MOVABLE ROLL RIGHT T1 T1 3230 37914 PA 3230 37919 JDAH 3230 37917 SI 3230 37901 TI P2 H, P2 3230 37902 TI H, P2 3230 37903 TI H, P2 3230 37904 TI H, P2 3230 37905 TI H, P2 3230 37906 TI H, P2 3230 37907 TI H, P2 3230 37908 ZAH 3230 37909 ZAH 3230 37910 XL 3230 37910 XS 3230 37913 PDAH LUBE OIL PUMP LUBE OIL PRESSURE FIXED ROLL MOTOR FIXED/MOVABLE ROLL POWER MOTOR SPEED OIL SUMP MOTOR BEARING GEAR BOX BEARING MOTOR BEARING MOTOR WINDING MOTOR WINDING MOTOR WINDING MOTOR COUPLING MOTOR COUPLING GEAR LUBE OIL LUBE OIL FILTER 3230 37981 II 3230 37981 XA 3230 37981 HS J/SP 3230 37982 II 3230 37982 XA 3230 37982 HS J/SP T1 T1 3230 37814 PA 3230 37818 ZI 3230 37819 ZI 3230 37801 TI H, P2 3230 37802 TI H, P2 3230 37803 TI H, P2 3230 37804 TI H, P2 3230 37805 TI H, P2 3230 37806 TI H, P2 3230 37807 TI H, P2 3230 37808 ZAH 3230 37809 ZAH 3230 37810 XL 3230 37810 XS 3230 37813 PDAH LUBE OIL PUMP LUBE OIL PRESSURE FIXED ROLL MOTOR MOVABLE ROLL LEFT POSITION MOTOR SPEED OIL SUMP MOTOR BEARING GEAR BOX BEARING MOTOR BEARING MOTOR WINDING MOTOR WINDING MOTOR WINDING MOTOR COUPLING MOTOR COUPLING GEAR LUBE OIL LUBE OIL FILTER 3230 37881 II 3230 37881 XA 3230 37881 HS J/SP 3230 37882 II 3230 37882 XA 3230 37882 HS J/SP T1 T1 3230 38014 PI 3230 38015 PI 3230 38016 XS 3230 38016 XL 3230 38018 XS 3230 38018 XL 3230 38017 PAH 3230 38019 PDAH 3230 38013 PDAH 3230 38001 LAL 3230 38002 LAH 3230 06865 XL 3230 06865 XS 3230 38003 XL 3230 38003 XS 3230 38004 XL 3230 38004 XS 3230 06866 XL 3230 06866 XS 3230 06867 XL 3230 06867 XS 3230 06868 XL 3230 06868 XS 3230 06869 XL 3230 06869 XS 3230 38010 TI 3230 37817 SI MOVABLE ROLL RIGHT POSITION H, P2 P2 P2 P2 P2 H, P2 H, P2 P2 A-B HYDRAULIC SYST. LEFT HYDRAULIC SYST. RIGHT HYDRAULIC PUMP A HYDRAULIC PUMP B SOLENOID Y2 OIL FILTER SOLENOID Y1 OIL FILTER LEFT OIL FILTER RIGHT OIL TANK OIL TANK SOLENOID Y4 BLOCK VALVE SOLENOID Y8 SOLENOID Y11 SOLENOID Y3 SOLENOID Y9 BLOCK VALVE HYDRAULIC OIL TEMP. 3230 38082 II 3230 38082 XA 3230 38082 HS J/SP 3230 38081 II 3230 38081 XA 3230 38081 HS J/SP 3230-AI-1121-G1A-1/2"-N 1/2"x1/4" 3"x2" 3230-WF-1286-C1A-2"-N CR-018 ROLL CONTROLS CR-018 FIXED ROLL DRIVE CONTROLS CR-018 MOVABLE ROLL DRIVE CONTROLS CR-018 HYDRAULIC SYSTEM P.O NO.: VENDOR DWG NO.: VENDOR: P.O NO.: VENDOR DWG NO.: VENDOR: P.O NO.: VENDOR DWG NO.: VENDOR: P.O NO.: VENDOR DWG NO.: VENDOR: CR-018 ROLL CONTROLS CR-018 MOVABLE ROLL DRIVE CONTROLS CR-018 FIXED ROLL DRIVE CONTROLS CR-018 HYDRAULIC SYSTEM AFD - MOVABLE ROLL AFD - FIXED ROLL HOSE BY VENDOR 32 MM ID HOSE BY VENDOR 32 MM ID HOSE BY VENDOR 32 MM ID HOSE BY VENDOR 32 MM ID INSTRUMENT AIR 3112 3900-25J-022 CLOSED LOOP CWS HEADER 3113 3200-25J-083 CLOSED LOOP CWR HEADER 3114 3200-25J-084 AG KM LT ISSUED FOR CLIENT REVIEW 23-Dec-11 B RP ISSUED FOR COMBINED REVIEW 19-Jul-11 A 12/23/2011 K.MUNDY A.GUNSON T. OH L.TAMELIN 12/23/2011 2:54:29 PM WBS: 3230 B PIPING AND INSTRUMENTATION DIAGRAM TERTIARY CRUSHING 3200-25J-068 HPGR NO. 4 LUBE SYSTEM FAULT FAULT FAULT FAULT FAULT FAULT 3230 38025 XA COMMON ALARM 3230 37825 XA COMMON ALARM 3230 37925 XA COMMON ALARM 3230 37925 XA COMMON ALARM H, P2 CLOSED LOOP CWS HEADER 4046 3200-25J-083 CLOSED LOOP CWS HEADER 4041 3200-25J-083 CLOSED LOOP CWS HEADER 4043 3200-25J-083 CLOSED LOOP CWS HEADER 4042 3200-25J-083 CLOSED LOOP CWS HEADER 4047 3200-25J-083 CLOSED LOOP CWR HEADER 4040 3200-25J-084 CLOSED LOOP CWR HEADER 4039 3200-25J-084 CLOSED LOOP CWR HEADER 4045 3200-25J-084 CLOSED LOOP CWR HEADER 4044 3200-25J-084 CLOSED LOOP CWR HEADER 4048 3200-25J-084 3200-WF-1280-C1A-2"-N 3200-WF-1281-C1A-2"-N 3200-WF-1185-C1A-3"-N 3200-WF-1283-C1A-2"-N 3200-WF-1284-C1A-1-1/2"-N 3200-WF-1282-C1A-1-1/2"-N 3230-WF-1288-C1A-1-1/2"-N 3230-WF-1291-C1A-1-1/2"-N 3230-WF-1287-C1A-2"-N 3230-WF-1286-C1A-2"-N 3230-WF-1289-C1A-2"-N 3230-WF-1290-C1A-2"-N
  • 74.
    D 4 F B A 3 2 1 5 68 E 7 C REV. APPROVED CHK. DES. REV. DATE REVISION DESCRIPTION CLIENT LEAD ENGINEER SCALE DRAWING NUMBER CHECK DESIGN CHECK DRAWING DESIGNED BY DRAWN BY APPROVAL DATE APPROVAL DATE APPROVED CHK. DES. REV. DATE REVISION DESCRIPTION REFERENCE DRAWING No. 1:100 0 1:200 5m 10m 0 5m 10m 15m 20m 1:500 10m 0 20m 30m 40m 50m 1:1000 0 100m 50m 1:20 0 0.5m 1m 1.5m 2m 0 1:25 0.5m 1m 1.5m 1:33 1/3 2.5m 2m 0 1m 2m 3m 0 1:50 1m 2m 3m 4m 5m CAD FILE NAME: P:0CAD000SPEM** MODEL UPDATED: DWG. FILE UPDATED: MANUAL CHANGES MADE: YES NO YES NO YES NO PROJECT MANAGER ENGINEERING MANAGER AREA PROJECTENGINEER REFERENCE DRAWINGS SAFETY SHARE: APPROVAL DATE CONTRACT NO. SAFETY SHARE : BA6CVA1.IGR NOTICE: THIS DRAWING HAS NOT BEEN PUBLISHED AND IS THE SOLE PROPERTY OF FLUOR AND IS LENT TO THE BORROWER FOR THEIR CONFIDENTIAL USE ONLY, AND IN CONSIDERATION OF THE LOAN OF THIS DRAWING, THE BORROWER PROMISES AND AGREES TO RETURN IT UPON REQUEST AND AGREES THAT IT WILL NOT BE REPRODUCED, COPIED LENT OR OTHERWISE DISPOSED OF DIRECTLY OR INDIRECTLY, NOR USED FOR ANY OTHER PURPOSE OTHER THAN WHICH IT IS FURNISHED. NONE Apr 2011 240K-C2- 3230 38111 XS 3230 38111 XL 3230 38112 XS 3230 38112 XL 3230 38113 LAH 3230 38114 PAH 3230 38115 XS 3230 38115 XL 3230 38116 SI 3230 38117 SI 3230 38118 VI 3230 38119 LAHH 3230 38101 TI 3230 38102 TI 3230 38103 TI 3230 38104 TI 3230 38105 ZA 3230 38106 ZA 3230 38107 ZA 3230 38108 ZA 3230 38109 ZI 3230 38110 ZI P2 P2 P2 H, P2 HH, P2 H, P2 H, P2 H, P2 GUIDE RAIL LUBE BEARING LUBE LUBE OIL TANK BEARING LUBE BEARING LUBE SYSTEM MAIN FIXED ROOL MOVABLE ROLL GEAR BOX FEED MOVABLE ROLL LEFT FIXED ROLL LEFT MOVABLE ROLL RIGHT FIXED ROLL RIGHT MOVABLE ROLL LEFT MOVABLE ROLL LEFT MOVABLE ROLL LEFT MOVABLE ROLL RIGHT MOVABLE ROLL RIGHT MOVABLE ROLL RIGHT T1 T1 3230 38314 PA 3230 38319 JDAH 3230 38317 SI 3230 38301 TI P2 H, P2 3230 38302 TI H, P2 3230 38303 TI H, P2 3230 38304 TI H, P2 3230 38305 TI H, P2 3230 38306 TI H, P2 3230 38307 TI H, P2 3230 38308 ZAH 3230 38309 ZAH 3230 38310 XL 3230 38310 XS 3230 38313 PDA LUBE OIL PUMP LUBE OIL PRESSURE FIXED ROLL MOTOR FIXED/MOVABLE ROLL POWER MOTOR SPEED OIL SUMP MOTOR BEARING GEAR BOX BEARING MOTOR BEARING MOTOR WINDING MOTOR WINDING MOTOR WINDING MOTOR COUPLING MOTOR COUPLING GEAR LUBE OIL LUBE OIL FILTER 3230 38381 II 3230 38381 XA 3230 38381 HS J/SP 3230 38382 II 3230 38382 XA 3230 38382 HS J/SP T1 T1 3230 38214 PA 3230 38218 ZI 3230 38219 ZI 3230 38201 TI H, P2 3230 38202 TI H, P2 3230 38203 TI H, P2 3230 38204 TI H, P2 3230 38205 TI H, P2 3230 38206 TI H, P2 3230 38207 TI H, P2 3230 38208 ZAH 3230 38209 ZAH 3230 38210 XL 3230 38210 XS 3230 38213 PDA LUBE OIL PUMP LUBE OIL PRESSURE FIXED ROLL MOTOR MOVABLE ROLL LEFT POSITION MOTOR SPEED OIL SUMP MOTOR BEARING GEAR BOX BEARING MOTOR BEARING MOTOR WINDING MOTOR WINDING MOTOR WINDING MOTOR COUPLING MOTOR COUPLING GEAR LUBE OIL LUBE OIL FILTER 3230 38281 II 3230 38281 XA 3230 38281 HS J/SP 3230 38282 II 3230 38282 XA 3230 38282 HS J/SP T1 T1 3230 38414 PI 3230 38415 PI 3230 38416 XS 3230 38416 XL 3230 38418 XS 3230 38418 XL 3230 38417 PAH 3230 38419 PDAH 3230 38413 PDAH 3230 38401 LAL 3230 38402 LAH 3230 38405 XL 3230 38405 XS 3230 38403 XL 3230 38403 XS 3230 38404 XL 3230 38404 XS 3230 38406 XL 3230 38406 XS 3230 38407 XL 3230 38407 XS 3230 38408 XL 3230 38408 XS 3230 38409 XL 3230 38409 XS 3230 38410 TI 3230 38217 SI MOVABLE ROLL RIGHT POSITION H, P2 P2 P2 P2 P2 H, P2 H, P2 A-B HYDRAULIC SYST. LEFT HYDRAULIC SYST. RIGHT HYDRAULIC PUMP A HYDRAULIC PUMP B SOLENOID Y2 OIL FILTER SOLENOID Y1 OIL FILTER LEFT OIL FILTER RIGHT OIL TANK OIL TANK SOLENOID Y4 BLOCK VALVE SOLENOID Y8 SOLENOID Y11 SOLENOID Y3 SOLENOID Y9 BLOCK VALVE HYDRAULIC OIL TEMP. 3230 38482 II 3230 38482 XA 3230 38482 HS J/SP 3230 38481 II 3230 38481 XA 3230 38481 HS J/SP 3230-AI-1122-G1A-1/2"-N 1/2"x1/4" 3"x2" CR-025 ROLL CONTROLS CR-025 FIXED ROLL DRIVE CONTROLS CR-025 MOVABLE ROLL DRIVE CONTROLS CR-025 HYDRAULIC SYSTEM P.O NO.: VENDOR DWG NO.: VENDOR: P.O NO.: VENDOR DWG NO.: VENDOR: P.O NO.: VENDOR DWG NO.: VENDOR: P.O NO.: VENDOR DWG NO.: VENDOR: CR-025 ROLL CONTROLS CR-025 MOVABLE ROLL DRIVE CONTROLS CR-025 FIXED ROLL DRIVE CONTROLS CR-025 HYDRAULIC SYSTEM AFD - MOVABLE ROLL AFD - FIXED ROLL HOSE BY VENDOR 32 MM ID HOSE BY VENDOR 32 MM ID HOSE BY VENDOR 32 MM ID HOSE BY VENDOR 32 MM ID INSTRUMENT AIR 3116 3900-25J-022 CLOSED LOOP CWS HEADER 3117 3200-25J-083 CLOSED LOOP CWR HEADER 3118 3200-25J-084 AG KM LT ISSUED FOR CLIENT REVIEW 23-Dec-11 B RP ISSUED FOR COMBINED REVIEW 19-Jul-11 A 12/23/2011 K.MUNDY A.GUNSON T. OH L.TAMELIN 12/23/2011 2:55:13 PM WBS: 3230 B PIPING AND INSTRUMENTATION DIAGRAM TERTIARY CRUSHING 3200-25J-069 HPGR NO. 5 LUBE SYSTEM FAULT FAULT FAULT FAULT FAULT FAULT P2 3230 38425 XA COMMON ALARM 3230 38225 XA COMMON ALARM 3230 38325 XA COMMON ALARM 3230 38125 XA COMMON ALARM H, P2 CLOSED LOOP CWS HEADER 4055 3200-25J-083 CLOSED LOOP CWS HEADER 4049 3200-25J-083 CLOSED LOOP CWS HEADER 4051 3200-25J-083 CLOSED LOOP CWS HEADER 4050 3200-25J-083 CLOSED LOOP CWS HEADER 4056 3200-25J-083 CLOSED LOOP CWR HEADER 4054 3200-25J-084 CLOSED LOOP CWR HEADER 4058 3200-25J-084 CLOSED LOOP CWR HEADER 4053 3200-25J-084 CLOSED LOOP CWR HEADER 4057 3200-25J-084 CLOSED LOOP CWR HEADER 4052 3200-25J-084 3200-WF-1292-C1A-2"-N 3200-WF-1186-C1A-3"-N 3200-WF-1293-C1A-2"-N 3200-WF-1295-C1A-2"-N 3200-WF-1296-C1A-1-1/2"-N 3200-WF-1294-C1A-1-1/2"-N 3230-WF-1302-C1A-2"-N 3230-WF-1301-C1A-2"-N 3230-WF-1298-C1A-2"-N 3230-WF-1299-C1A-2"-N 3230-WF-1303-C1A-1-1/2"-N 3230-WF-1300-C1A-1-1/2"-N
  • 75.
    D 4 F B A 3 2 1 5 68 E 7 C REV. APPROVED CHK. DES. REV. DATE REVISION DESCRIPTION CLIENT LEAD ENGINEER SCALE DRAWING NUMBER CHECK DESIGN CHECK DRAWING DESIGNED BY DRAWN BY APPROVAL DATE APPROVAL DATE APPROVED CHK. DES. REV. DATE REVISION DESCRIPTION REFERENCE DRAWING No. 1:100 0 1:200 5m 10m 0 5m 10m 15m 20m 1:500 10m 0 20m 30m 40m 50m 1:1000 0 100m 50m 1:20 0 0.5m 1m 1.5m 2m 0 1:25 0.5m 1m 1.5m 1:33 1/3 2.5m 2m 0 1m 2m 3m 0 1:50 1m 2m 3m 4m 5m CAD FILE NAME: P:0CAD000SPEM** MODEL UPDATED: DWG. FILE UPDATED: MANUAL CHANGES MADE: YES NO YES NO YES NO PROJECT MANAGER ENGINEERING MANAGER AREA PROJECTENGINEER REFERENCE DRAWINGS SAFETY SHARE: APPROVAL DATE CONTRACT NO. SAFETY SHARE : BA6CVA1.IGR NOTICE: THIS DRAWING HAS NOT BEEN PUBLISHED AND IS THE SOLE PROPERTY OF FLUOR AND IS LENT TO THE BORROWER FOR THEIR CONFIDENTIAL USE ONLY, AND IN CONSIDERATION OF THE LOAN OF THIS DRAWING, THE BORROWER PROMISES AND AGREES TO RETURN IT UPON REQUEST AND AGREES THAT IT WILL NOT BE REPRODUCED, COPIED LENT OR OTHERWISE DISPOSED OF DIRECTLY OR INDIRECTLY, NOR USED FOR ANY OTHER PURPOSE OTHER THAN WHICH IT IS FURNISHED. NONE Apr 2011 240K-C2- 3230 38511 XS 3230 38511 XL 3230 38512 XS 3230 38512 XL 3230 38513 LAH 3230 38514 PAH 3230 38515 XS 3230 38515 XL 3230 38516 SI 3230 38517 SI 3230 38518 VI 3230 38519 LAHH 3230 38501 TI 3230 38502 TI 3230 38503 TI 3230 38504 TI 3230 38505 ZA 3230 38506 ZA 3230 38507 ZA 3230 38508 ZA 3230 38509 ZI 3230 38510 ZI P2 P2 P2 H, P2 HH, P2 H, P2 H, P2 H, P2 GUIDE RAIL LUBE BEARING LUBE LUBE OIL TANK BEARING LUBE BEARING LUBE SYSTEM MAIN FIXED ROOL MOVABLE ROLL GEAR BOX FEED MOVABLE ROLL LEFT FIXED ROLL LEFT MOVABLE ROLL RIGHT FIXED ROLL RIGHT MOVABLE ROLL LEFT MOVABLE ROLL LEFT MOVABLE ROLL LEFT MOVABLE ROLL RIGHT MOVABLE ROLL RIGHT MOVABLE ROLL RIGHT T1 T1 3230 38714 PA 3230 38719 JDAH 3230 38717 SI 3230 38701 TI H, P2 H, P2 3230 38702 TI H, P2 3230 38703 TI H, P2 3230 38704 TI H, P2 3230 38705 TI H, P2 3230 38706 TI H, P2 3230 38707 TI H, P2 3230 38708 ZAH 3230 38709 ZAH 3230 38710 XL 3230 38710 XS 3230 38713 PDAH LUBE OIL PUMP LUBE OIL PRESSURE FIXED ROLL MOTOR FIXED/MOVABLE ROLL POWER MOTOR SPEED OIL SUMP MOTOR BEARING GEAR BOX BEARING MOTOR BEARING MOTOR WINDING MOTOR WINDING MOTOR WINDING MOTOR COUPLING MOTOR COUPLING GEAR LUBE OIL LUBE OIL FILTER 3230 38781 II 3230 38781 XA 3230 38781 HS J/SP 3230 38782 II 3230 38782 XA 3230 38782 HS J/SP T1 T1 3230 38614 PA 3230 38618 ZI 3230 38619 ZI 3230 38601 TI H, P2 3230 38602 TI H, P2 3230 38603 TI H, P2 3230 38604 TI H, P2 3230 38605 TI H, P2 3230 38606 TI H, P2 3230 38607 TI H, P2 3230 38608 ZAH 3230 38609 ZAH 3230 38610 XL 3230 38610 XS 3230 38613 PDAH LUBE OIL PUMP LUBE OIL PRESSURE FIXED ROLL MOTOR MOVABLE ROLL LEFT POSITION MOTOR SPEED OIL SUMP MOTOR BEARING GEAR BOX BEARING MOTOR BEARING MOTOR WINDING MOTOR WINDING MOTOR WINDING MOTOR COUPLING MOTOR COUPLING GEAR LUBE OIL LUBE OIL FILTER 3230 38681 II 3230 38681 XA 3230 38681 HS J/SP 3230 38682 II 3230 38682 XA 3230 38682 HS J/SP T1 T1 3230 38814 PI 3230 38815 PI 3230 38816 XS 3230 38816 XL 3230 38818 XS 3230 38818 XL 3230 38817 PAH 3230 38819 PDAH 3230 38813 PDAH 3230 38801 LAL 3230 38802 LAH 3230 38805 XL 3230 38805 XS 3230 38803 XL 3230 38803 XS 3230 38804 XL 3230 38804 XS 3230 38806 XL 3230 38806 XS 3230 38807 XL 3230 38807 XS 3230 38808 XL 3230 38808 XS 3230 38809 XL 3230 38809 XS 3230 38810 TI 3230 38617 SI MOVABLE ROLL RIGHT POSITION H, P2 P2 P2 P2 P2 H, P2 H, P2 A-B HYDRAULIC SYST. LEFT HYDRAULIC SYST. RIGHT HYDRAULIC PUMP A HYDRAULIC PUMP B SOLENOID Y2 OIL FILTER SOLENOID Y1 OIL FILTER LEFT OIL FILTER RIGHT OIL TANK OIL TANK SOLENOID Y4 BLOCK VALVE SOLENOID Y8 SOLENOID Y11 SOLENOID Y3 SOLENOID Y9 BLOCK VALVE HYDRAULIC OIL TEMP. 3230 38882 II 3230 38882 XA 3230 38882 HS J/SP 3230 38881 II 3230 38881 XA 3230 38881 HS J/SP 3230-AI-1123-G1A-1/2"-N 1/2"x1/4" 3"x2" CR-026 ROLL CONTROLS CR-026 FIXED ROLL DRIVE CONTROLS CR-026 MOVABLE ROLL DRIVE CONTROLS CR-026 HYDRAULIC SYSTEM P.O NO.: VENDOR DWG NO.: VENDOR: P.O NO.: VENDOR DWG NO.: VENDOR: P.O NO.: VENDOR DWG NO.: VENDOR: P.O NO.: VENDOR DWG NO.: VENDOR: CR-026 ROLL CONTROLS CR-026 MOVABLE ROLL DRIVE CONTROLS CR-026 FIXED ROLL DRIVE CONTROLS CR-026 HYDRAULIC SYSTEM AFD - MOVABLE ROLL AFD - FIXED ROLL HOSE BY VENDOR 32 MM ID HOSE BY VENDOR 32 MM ID HOSE BY VENDOR 32 MM ID HOSE BY VENDOR 32 MM ID INSTRUMENT AIR 3119 3900-25J-022 CLOSED LOOP CWS HEADER 3120 3200-25J-083 CLOSED LOOP CWR HEADER 3121 3200-25J-084 AG KM LT ISSUED FOR CLIENT REVIEW 23-Dec-11 B RP ISSUED FOR COMBINED REVIEW 19-Jul-11 A 12/23/2011 K.MUNDY A.GUNSON T. OH L.TAMELIN 12/23/2011 2:55:55 PM WBS: 3230 B PIPING AND INSTRUMENTATION DIAGRAM TERTIARY CRUSHING 3200-25J-070 HPRG NO. 6 LUBE SYSTEM FAULT FAULT FAULT FAULT FAULT FAULT 3230 38825 XA COMMON ALARM P2 3230 38625 XA COMMON ALARM 3230 38725 XA COMMON ALARM 3230 38525 XA COMMON ALARM H, P2 CLOSED LOOP CWS HEADER 4062 3200-25J-083 CLOSED LOOP CWS HEADER 4061 3200-25J-083 CLOSED LOOP CWS HEADER 4066 3200-25J-083 CLOSED LOOP CWS HEADER 4063 3200-25J-083 CLOSED LOOP CWS HEADER 4068 3200-25J-083 CLOSED LOOP CWR HEADER 4065 3200-25J-084 CLOSED LOOP CWR HEADER 4060 3200-25J-084 CLOSED LOOP CWR HEADER 4067 3200-25J-084 CLOSED LOOP CWR HEADER 4064 3200-25J-084 CLOSED LOOP CWR HEADER 4059 3200-25J-084 3200-WF-1306-C1A-1-1/2"-N 3200-WF-1308-C1A-1-1/2"-N 3200-WF-1307-C1A-2"-N 3200-WF-1187-C1A-3"-N 3200-WF-1305-C1A-2"-N 3200-WF-1304-C1A-2"-N 3230-WF-1312-C1A-1-1/2"-N 3230-WF-1315-C1A-1-1/2"-N 3230-WF-1311-C1A-2"-N 3230-WF-1310-C1A-2"-N 3230-WF-1313-C1A-2"-N 3230-WF-1314-C1A-2"-N
  • 76.
    D 4 F B A 3 2 1 5 68 E 7 C REV. APPROVED CHK. DES. REV. DATE REVISION DESCRIPTION CLIENT LEAD ENGINEER SCALE DRAWING NUMBER CHECK DESIGN CHECK DRAWING DESIGNED BY DRAWN BY APPROVAL DATE APPROVAL DATE APPROVED CHK. DES. REV. DATE REVISION DESCRIPTION REFERENCE DRAWING No. 1:100 0 1:200 5m 10m 0 5m 10m 15m 20m 1:500 10m 0 20m 30m 40m 50m 1:1000 0 100m 50m 1:20 0 0.5m 1m 1.5m 2m 0 1:25 0.5m 1m 1.5m 1:33 1/3 2.5m 2m 0 1m 2m 3m 0 1:50 1m 2m 3m 4m 5m CAD FILE NAME: P:0CAD000SPEM** MODEL UPDATED: DWG. FILE UPDATED: MANUAL CHANGES MADE: YES NO YES NO YES NO PROJECT MANAGER ENGINEERING MANAGER AREA PROJECTENGINEER REFERENCE DRAWINGS SAFETY SHARE: APPROVAL DATE CONTRACT NO. SAFETY SHARE : BA6CVA1.IGR NOTICE: THIS DRAWING HAS NOT BEEN PUBLISHED AND IS THE SOLE PROPERTY OF FLUOR AND IS LENT TO THE BORROWER FOR THEIR CONFIDENTIAL USE ONLY, AND IN CONSIDERATION OF THE LOAN OF THIS DRAWING, THE BORROWER PROMISES AND AGREES TO RETURN IT UPON REQUEST AND AGREES THAT IT WILL NOT BE REPRODUCED, COPIED LENT OR OTHERWISE DISPOSED OF DIRECTLY OR INDIRECTLY, NOR USED FOR ANY OTHER PURPOSE OTHER THAN WHICH IT IS FURNISHED. NONE Apr 2011 240K-C2- 3230 38911 XS 3230 38911 XL 3230 38912 XS 3230 38912 XL 3230 38913 LAH 3230 38914 PAH 3230 38915 XS 3230 38915 XL 3230 38916 SI 3230 38917 SI 3230 38918 VI 3230 38919 LAHH 3230 38901 TI 3230 38902 TI 3230 38903 TI 3230 38904 TI 3230 38905 ZA 3230 38906 ZA 3230 38907 ZA 3230 38908 ZA 3230 38909 ZI 3230 38910 ZI P2 P2 P2 H, P2 HH, P2 H, P2 H, P2 H, P2 GUIDE RAIL LUBE BEARING LUBE LUBE OIL TANK BEARING LUBE BEARING LUBE SYSTEM MAIN FIXED ROOL MOVABLE ROLL GEAR BOX FEED MOVABLE ROLL LEFT FIXED ROLL LEFT MOVABLE ROLL RIGHT FIXED ROLL RIGHT MOVABLE ROLL LEFT MOVABLE ROLL LEFT MOVABLE ROLL LEFT MOVABLE ROLL RIGHT MOVABLE ROLL RIGHT MOVABLE ROLL RIGHT T1 T1 3230 39114 PA 3230 39119 JDAH 3230 39117 SI 3230 39101 TI P2 H, P2 3230 39102 TI H, P2 3230 07123 TI H, P2 3230 39104 TI H, P2 3230 39105 TI H, P2 3230 39106 TI H, P2 3230 39107 TI H, P2 3230 39108 ZAH 3230 39109 ZAH 3230 39110 XL 3230 39110 XS 3230 39113 PDAH LUBE OIL PUMP LUBE OIL PRESSURE FIXED ROLL MOTOR FIXED/MOVABLE ROLL POWER MOTOR SPEED OIL SUMP MOTOR BEARING GEAR BOX BEARING MOTOR BEARING MOTOR WINDING MOTOR WINDING MOTOR WINDING MOTOR COUPLING MOTOR COUPLING GEAR LUBE OIL LUBE OIL FILTER 3230 39181 II 3230 39181 XA 3230 39181 HS J/SP 3230 39182 II 3230 39182 XA 3230 39182 HS J/SP T1 T1 3230 39014 PA 3230 39018 ZI 3230 39019 ZI 3230 39001 TI H, P2 3230 39002 TI H, P2 3230 39003 TI H, P2 3230 39004 TI H, P2 3230 39005 TI H, P2 3230 39006 TI H, P2 3230 39007 TI H, P2 3230 39008 ZAH 3230 39009 ZAH 3230 39010 XL 3230 39010 XS 3230 39013 PDAH LUBE OIL PUMP LUBE OIL PRESSURE FIXED ROLL MOTOR MOVABLE ROLL LEFT POSITION MOTOR SPEED OIL SUMP MOTOR BEARING GEAR BOX BEARING MOTOR BEARING MOTOR WINDING MOTOR WINDING MOTOR WINDING MOTOR COUPLING MOTOR COUPLING GEAR LUBE OIL LUBE OIL FILTER 3230 39081 II 3230 39081 XA 3230 39081 HS J/SP 3230 39082 II 3230 39082 XA 3230 39082 HS J/SP T1 T1 3230 39214 PI 3230 39215 PI 3230 39216 XS 3230 39216 XL 3230 39218 XS 3230 39218 XL 3230 39217 PAH 3230 39219 PDAH 3230 39213 PDAH 3230 39201 LAL 3230 39202 LAH 3230 39205 XL 3230 39205 XS 3230 39203 XL 3230 39203 XS 3230 39204 XL 3230 39204 XS 3230 39206 XL 3230 39206 XS 3230 39207 XL 3230 39207 XS 3230 39208 XL 3230 39208 XS 3230 39007 XL 3230 39007 XS 3230 39210 TI 3230 07157 SI MOVABLE ROLL RIGHT POSITION H, P2 P2 P2 P2 P2 H, P2 H, P2 A-B HYDRAULIC SYST. LEFT HYDRAULIC SYST. RIGHT HYDRAULIC PUMP A HYDRAULIC PUMP B SOLENOID Y2 OIL FILTER SOLENOID Y1 OIL FILTER LEFT OIL FILTER RIGHT OIL TANK OIL TANK SOLENOID Y4 BLOCK VALVE SOLENOID Y8 SOLENOID Y11 SOLENOID Y3 SOLENOID Y9 BLOCK VALVE HYDRAULIC OIL TEMP. 3230 39282 II 3230 39282 XA 3230 39282 HS J/SP 3230 39281 II 3230 39281 XA 3230 39281 HS J/SP 3230-AI-1124-G1A-1/2"-N 1/2"x1/4" 3"x2" 3200-WF-1320-C1A-1-1/2"-N 3230-WF-1319-C1A-2"-N 3230-WF-1322-C1A-2"-N CR-027 ROLL CONTROLS CR-027 FIXED ROLL DRIVE CONTROLS CR-027 MOVABLE ROLL DRIVE CONTROLS CR-027 HYDRAULIC SYSTEM P.O NO.: VENDOR DWG NO.: VENDOR: P.O NO.: VENDOR DWG NO.: VENDOR: P.O NO.: VENDOR DWG NO.: VENDOR: P.O NO.: VENDOR DWG NO.: VENDOR: CR-027 ROLL CONTROLS CR-027 MOVABLE ROLL DRIVE CONTROLS CR-027 FIXED ROLL DRIVE CONTROLS CR-027 HYDRAULIC SYSTEM AFD - MOVABLE ROLL AFD - FIXED ROLL HOSE BY VENDOR 32 MM ID HOSE BY VENDOR 32 MM ID HOSE BY VENDOR 32 MM ID HOSE BY VENDOR 32 MM ID INSTRUMENT AIR 3122 3900-25J-022 CLOSED LOOP CWS HEADER 3123 3200-25J-083 CLOSED LOOP CWR HEADER 3124 3200-25J-084 AG KM LT ISSUED FOR CLIENT REVIEW 23-Dec-11 B RP ISSUED FOR COMBINED REVIEW 19-Jul-11 A 12/23/2011 K.MUNDY A.GUNSON T. OH L.TAMELIN 12/23/2011 2:56:36 PM WBS: 3230 B PIPING AND INSTRUMENTATION DIAGRAM TERTIARY CRUSHING 3200-25J-071 HPGR NO. 7 LUBE SYSTEM FAULT FAULT FAULT FAULT FAULT FAULT P2 3230 39225 XA COMMON ALARM 3230 39025 XA COMMON ALARM 3230 39125 XA COMMON ALARM 3230 38925 XA COMMON ALARM H, P2 CLOSED LOOP CWS HEADER 4069 3200-25J-083 CLOSED LOOP CWS HEADER 4073 3200-25J-083 CLOSED LOOP CWS HEADER 4070 3200-25J-083 CLOSED LOOP CWS HEADER 4076 3200-25J-083 CLOSED LOOP CWS HEADER 4075 3200-25J-083 CLOSED LOOP CWR HEADER 4074 3200-25J-084 CLOSED LOOP CWR HEADER 4072 3200-25J-084 CLOSED LOOP CWR HEADER 4078 3200-25J-084 CLOSED LOOP CWR HEADER 4071 3200-25J-084 CLOSED LOOP CWR HEADER 4077 3200-25J-084 3200-WF-1316-C1A-2"-N 3200-WF-1317-C1A-2"-N 3200-WF-1188-C1A-3"-N 3200-WF-1320-C1A-1-1/2"-N 3230-WF-1319-C1A-2"-N 3200-WF-1318-C1A-1-1/2"-N 3230-WF-1326-C1A-2"-N 3230-WF-1325-C1A-2"-N 3230-WF-1323-C1A-2"-N 3230-WF-1322-C1A-2"-N 3230-WF-1327-C1A-1-1/2"-N 3230-WF-1324-C1A-1-1/2"-N
  • 77.
    D 4 F B A 3 2 1 5 68 E 7 C REV. APPROVED CHK. DES. REV. DATE REVISION DESCRIPTION CLIENT LEAD ENGINEER SCALE DRAWING NUMBER CHECK DESIGN CHECK DRAWING DESIGNED BY DRAWN BY APPROVAL DATE APPROVAL DATE APPROVED CHK. DES. REV. DATE REVISION DESCRIPTION REFERENCE DRAWING No. 1:100 0 1:200 5m 10m 0 5m 10m 15m 20m 1:500 10m 0 20m 30m 40m 50m 1:1000 0 100m 50m 1:20 0 0.5m 1m 1.5m 2m 0 1:25 0.5m 1m 1.5m 1:33 1/3 2.5m 2m 0 1m 2m 3m 0 1:50 1m 2m 3m 4m 5m CAD FILE NAME: P:0CAD000SPEM** MODEL UPDATED: DWG. FILE UPDATED: MANUAL CHANGES MADE: YES NO YES NO YES NO PROJECT MANAGER ENGINEERING MANAGER AREA PROJECTENGINEER REFERENCE DRAWINGS SAFETY SHARE: APPROVAL DATE CONTRACT NO. SAFETY SHARE : BA6CVA1.IGR NOTICE: THIS DRAWING HAS NOT BEEN PUBLISHED AND IS THE SOLE PROPERTY OF FLUOR AND IS LENT TO THE BORROWER FOR THEIR CONFIDENTIAL USE ONLY, AND IN CONSIDERATION OF THE LOAN OF THIS DRAWING, THE BORROWER PROMISES AND AGREES TO RETURN IT UPON REQUEST AND AGREES THAT IT WILL NOT BE REPRODUCED, COPIED LENT OR OTHERWISE DISPOSED OF DIRECTLY OR INDIRECTLY, NOR USED FOR ANY OTHER PURPOSE OTHER THAN WHICH IT IS FURNISHED. NONE Apr 2011 240K-C2- 3230 39311 XS 3230 39311 XL 3230 39312 XS 3230 39312 XL 3230 39313 LAH 3230 39314 PAH 3230 39315 XS 3230 39315 XL 3230 39316 SI 3230 39317 SI 3230 39318 VI 3230 39319 LAHH 3230 39301 TI 3230 39302 TI 3230 39303 TI 3230 39304 TI 3230 39305 ZA 3230 39306 ZA 3230 39307 ZA 3230 39308 ZA 3230 39309 ZI 3230 39310 ZI P2 P2 P2 H, P2 HH, P2 H, P2 H, P2 H, P2 GUIDE RAIL LUBE BEARING LUBE LUBE OIL TANK BEARING LUBE BEARING LUBE SYSTEM MAIN FIXED ROOL MOVABLE ROLL GEAR BOX FEED MOVABLE ROLL LEFT FIXED ROLL LEFT MOVABLE ROLL RIGHT FIXED ROLL RIGHT MOVABLE ROLL LEFT MOVABLE ROLL LEFT MOVABLE ROLL LEFT MOVABLE ROLL RIGHT MOVABLE ROLL RIGHT MOVABLE ROLL RIGHT T1 T1 3230 39514 PA 3230 39519 JDAH 3230 39517 SI 3230 39501 TI P2 H, P2 3230 39502 TI H, P2 3230 39503 TI H, P2 3230 39504 TI H, P2 3230 39505 TI H, P2 3230 39506 TI H, P2 3230 39507 TI H, P2 3230 39508 ZAH 3230 39509 ZAH 3230 39510 XL 3230 39510 XS 3230 39513 PDAH LUBE OIL PUMP LUBE OIL PRESSURE FIXED ROLL MOTOR FIXED/MOVABLE ROLL POWER MOTOR SPEED OIL SUMP MOTOR BEARING GEAR BOX BEARING MOTOR BEARING MOTOR WINDING MOTOR WINDING MOTOR WINDING MOTOR COUPLING MOTOR COUPLING GEAR LUBE OIL LUBE OIL FILTER 3230 39581 II 3230 39581 HS J/SP 3230 39582 II 3230 39582 XA 3230 39582 HS J/SP T1 T1 3230 39414 PA 3230 39418 ZI 3230 39419 ZI 3230 39401 TI H, P2 3230 39602 TI H, P2 3230 39403 TI H, P2 3230 39404 TI H, P2 3230 39405 TI H, P2 3230 39406 TI H, P2 3230 39407 TI H, P2 3230 39408 ZAH 3230 39409 ZAH 3230 39410 XL 3230 39410 XS 3230 39413 PDAH LUBE OIL PUMP LUBE OIL PRESSURE FIXED ROLL MOTOR MOVABLE ROLL LEFT POSITION MOTOR SPEED OIL SUMP MOTOR BEARING GEAR BOX BEARING MOTOR BEARING MOTOR WINDING MOTOR WINDING MOTOR WINDING MOTOR COUPLING MOTOR COUPLING GEAR LUBE OIL LUBE OIL FILTER 3230 39481 II 3230 39481 XA 3230 39481 HS J/SP 3230 39482 II 3230 39482 XA 3230 39482 HS J/SP T1 T1 3230 39614 PI 3230 39615 PI 3230 39616 XS 3230 39616 XL 3230 39618 XS 3230 39618 XL 3230 39617 PAH 3230 39619 PDAH 3230 39613 PDAH 3230 39601 LAL 3230 39602 LAH 3230 39605 XL 3230 39605 XS 3230 39603 XL 3230 39603 XS 3230 39604 XL 3230 39604 XS 3230 39606 XL 3230 39606 XS 3230 39607 XL 3230 39607 XS 3230 39608 XL 3230 39608 XS 3230 39609 XL 3230 39609 XS 3230 39610 TI 3230 39417 SI MOVABLE ROLL RIGHT POSITION H, P2 P2 P2 P2 P2 H, P2 H, P2 A-B HYDRAULIC SYST. LEFT HYDRAULIC SYST. RIGHT HYDRAULIC PUMP A HYDRAULIC PUMP B SOLENOID Y2 OIL FILTER SOLENOID Y1 OIL FILTER LEFT OIL FILTER RIGHT OIL TANK OIL TANK SOLENOID Y4 BLOCK VALVE SOLENOID Y8 SOLENOID Y11 SOLENOID Y3 SOLENOID Y9 BLOCK VALVE HYDRAULIC OIL TEMP. 3230 39682 II 3230 39682 XA 3230 39682 HS J/SP 3230 39681 II 3230 39681 XA 3230 39681 HS J/SP 3230-AI-1125-G1A-1/2"-N 1/2"x1/4" 3"x2" 3200-WF-1332-C1A-1-1/2"-N 3200-WF-1331-C1A-2"-N CR-028 ROLL CONTROLS. CR-028 FIXED ROLL DRIVE CONTROLS CR-028 MOVABLE ROLL DRIVE CONTROLS CR-028 HYDRAULIC SYSTEM P.O NO.: VENDOR DWG NO.: VENDOR: P.O NO.: VENDOR DWG NO.: VENDOR: P.O NO.: VENDOR DWG NO.: VENDOR: P.O NO.: VENDOR DWG NO.: VENDOR: CR-028 ROLL CONTROLS CR-028 MOVABLE ROLL DRIVE CONTROLS CR-028 FIXED ROLL DRIVE CONTROLS CR-028 HYDRAULIC SYSTEM AFD - MOVABLE ROLL AFD - FIXED ROLL HOSE BY VENDOR 32 MM ID HOSE BY VENDOR 32 MM ID HOSE BY VENDOR 32 MM ID HOSE BY VENDOR 32 MM ID INSTRUMENT AIR 3125 3900-25J-022 CLOSED LOOP CWS HEADER 3126 3200-25J-083 CLOSED LOOP CWR HEADER 3127 3200-25J-084 AG KM LT ISSUED FOR CLIENT REVIEW 23-Dec-11 B RP ISSUED FOR COMBINED REVIEW 19-Jul-11 A 12/23/2011 K.MUNDY A.GUNSON T. OH L.TAMELIN 12/23/2011 2:57:24 PM WBS: 3230 B PIPING AND INSTRUMENTATION DIAGRAM TERTIARY CRUSHING 3200-25J-072 HPGR NO. 8 LUBE SYSTEM 3230 39581 XA FAULT FAULT FAULT FAULT FAULT FAULT P2 3230 39625 XA COMMON ALARM 3230 39425 XA COMMON ALARM 3230 39525 XA COMMON ALARM 3230 39325 XA COMMON ALARM H, P2 CLOSED LOOP CWS HEADER 4079 3200-25J-083 CLOSED LOOP CWS HEADER 4086 3200-25J-083 CLOSED LOOP CWS HEADER 4081 3200-25J-083 CLOSED LOOP CWS HEADER 4087 3200-25J-083 CLOSED LOOP CWS HEADER 4080 3200-25J-083 CLOSED LOOP CWR HEADER 4088 3200-25J-084 CLOSED LOOP CWR HEADER 4085 3200-25J-084 CLOSED LOOP CWR HEADER 4084 3200-25J-084 CLOSED LOOP CWR HEADER 4083 3200-25J-084 CLOSED LOOP CWR HEADER 4082 3200-25J-084 3200-WF-1328-C1A-2"-N 3200-WF-1329-C1A-2"-N 3200-WF-1189-C1A-3"-N 3200-WF-1331-C1A-2"-N 3200-WF-1332-C1A-1-1/2"-N 3200-WF-1330-C1A-1-1/2"-N 3230-WF-1338-C1A-2"-N 3230-WF-1337-C1A-2"-N 3230-WF-1334-C1A-2"-N 3230-WF-1335-C1A-2"-N 3230-WF-1339-C1A-1-1/2"-N 3230-WF-1336-C1A-1-1/2"-N
  • 78.
    GEAR REDUCER GEAR REDUCER GEAR REDUCER RHS T1 3230 07302 HSS A-D 3230 07301 HSA 3230 07381 XA 3230 07383 G TI 3230 07308 XA P1 3230 07382G TE 3230 07382 H TI BRG REAR H, P2 HH, P1 3230 07343 TI 3230 07301 HSA 3230 07303 A SI 3230 07381 H TI BRG REAR H, P2 HH, P1 3230 07381 G TE 3230 07410 SE 3230 07353 TI 3230 07310 WIT 3230 07305 ZAHH RHS A-E 3230 07382 G TI 3230 07382 H TE 3230 07322 A ZS 3230 07381 G TI 3230 07301 HSS 3230 07321 SE 3230 07301 HSS RHS 3230 07331 B YI 3230 07302 HSS 3230 07304 ZSHH 3230 07306 TI H, P2 HH, P1 3230 07383 G TE 3230 07321 SAL P1 3230 07343 TE 3230 07307 TI 3230 07303 A SE 3230 07385 XA 3230 07353 TE 3230 07304 ZAH 3230 07363 TE 3230 07383 XA 3230 07322 B ZA P1 3230 07331 A YI 3230 07308 A XS TEAR 3230 07303 SDI 3230 07322 A ZA 3230 07303 B SI 3230 07313 A XY 3230 07313 B XY 3230 07303 B ST 3230 07385 HS J/SP 3230 07313 XIH 3230 07303 B SE 3230 07310 WE 3230 07322 B ZS 3230 07313 B XE 3230 07313 A XE 3230 07382 II 3230 07315 A LSH 3230 07306 TE 3230 07305 ZAHH 3230 07321 SSL 3230 07382 XA FAULT 3230 07304 ZSH A-E 3230 07303 A ST 3230 07310 WI 3230 07302 HSA A-D 3230 07381 H TE 3230 07307 TE 3230 07305 ZSH 3230 07305 ZAH 3230 07383 H TI BRG REAR H, P2 HH, P1 3230 07383 H TE 3230 07385 II 3230 07302 HSA 3230 07315 B LSH 3230 07331 B YT 3230 07305 ZSHH 3230 07315 A LAH P1 3230 07383 II 3230 07381 II 3230 07308 B XS 3230 07315 B LAH P1 3230 07331 A YT 3230 07363 TI TER. CRUSHER PRODUCT HPGR CRUSHER NO.2, C2-3230-CR-016 1829 3200-25J-051 TER. CRUSHER PRODUCT HPGR CRUSHER NO.1, C2-3230-CR-015 1360 3200-25J-049 TER. CRUSHER PRODUCT HPGR CRUSHER NO.3, C2-3230-CR-017 1830 3200-25J-053 TER. CRUSHER PRODUCT HPGR PRODUCT CONVEYOR NO.1, C2-3230-CV-018 1292 3200-25J-075 TER. CRUSHER PRODUCT HPGR CRUSHER NO.4, C2-3230-CR-018 1831 3200-25J-055 P1 WRIM RHS P2 DUCTING LHS A-E BRG FRONT H, P2 HH, P1 BRG FRONT H, P2 HH, P1 A-D FAULT H, P2 HH, P1 A-D P1 LHS FAULT A,B FAULT H, P1 H, P2 HH, P1 P1 BRG FRONT H, P2 HH, P1 LHS LHS E-H, J-L A - N H, P2 HH, P1 E-H, J-L P2 H, P2 HH, P1 WRIM H, P2 RHS J-L E-H P1 L1, P1 LHS P1 WRIM HPGR PRODUCTION L, P2 E-H J-L LHS P2 RHS P1 A-E AG KM LT ISSUED FOR CLIENT REVIEW 23-Dec-11 B RP ISSUED FOR COMBINED REVIEW 23-Jun-11 A 12/23/2011 K.MUNDY A.GUNSON T. OH L.TAMELIN 12/23/2011 2:58:07 PM WBS: 3230 B PIPING AND INSTRUMENTATION DIAGRAM TERTIARY CRUSHING 3200-25J-073 HPGR DISCHARGE CONVEYOR NO. 1 C2-3230-CV-017 C2-3230-BN-061 C2-3230-MA-031 V V SIZE: C2-3230-SL-035 CV-017 BELT SCALE SIZE: MOTOR: 2700.00 kW C2-3230-CV-017 HPGR DISCHARGE CONVEYOR NO.1 C2-3230-ST-471 V SIZE: C2-3230-BN-061 CV-017 TRAMP METAL BIN C2-3230-ST-075 ES C2-3230-ZE-011 ES SIZE: C2-3230-ST-471 CV-017 TRAMP METAL CHUTE V V V V V V V V V V V ES 3230 07311 XA + SIZE: C2-3230-MA-031 CV-017 SELF CLEANING MAGNET V V ES V V V V V V C2-3230-SL-035 SIZE: C2-3230-ST-075 HPGR DISCHARGE CONVEYOR NO. 1 HEAD/DISCHARGE CHUTE D 4 F B A 3 2 1 5 6 8 E 7 C REV. APPROVED CHK. DES. REV. DATE REVISION DESCRIPTION CLIENT LEAD ENGINEER SCALE DRAWING NUMBER CHECK DESIGN CHECK DRAWING DESIGNED BY DRAWN BY APPROVAL DATE APPROVAL DATE APPROVED CHK. DES. REV. DATE REVISION DESCRIPTION REFERENCE DRAWING No. 1:100 0 1:200 5m 10m 0 5m 10m 15m 20m 1:500 10m 0 20m 30m 40m 50m 1:1000 0 100m 50m 1:20 0 0.5m 1m 1.5m 2m 0 1:25 0.5m 1m 1.5m 1:33 1/3 2.5m 2m 0 1m 2m 3m 0 1:50 1m 2m 3m 4m 5m CAD FILE NAME: P:0CAD000SPEM** MODEL UPDATED: DWG. FILE UPDATED: MANUAL CHANGES MADE: YES NO YES NO YES NO PROJECT MANAGER ENGINEERING MANAGER AREA PROJECTENGINEER REFERENCE DRAWINGS SAFETY SHARE: APPROVAL DATE CONTRACT NO. SAFETY SHARE : BA6CVA1.IGR NOTICE: THIS DRAWING HAS NOT BEEN PUBLISHED AND IS THE SOLE PROPERTY OF FLUOR AND IS LENT TO THE BORROWER FOR THEIR CONFIDENTIAL USE ONLY, AND IN CONSIDERATION OF THE LOAN OF THIS DRAWING, THE BORROWER PROMISES AND AGREES TO RETURN IT UPON REQUEST AND AGREES THAT IT WILL NOT BE REPRODUCED, COPIED LENT OR OTHERWISE DISPOSED OF DIRECTLY OR INDIRECTLY, NOR USED FOR ANY OTHER PURPOSE OTHER THAN WHICH IT IS FURNISHED. NONE Apr 2011 240K-C2- FILTERED DUST C2-3230-DC-161 3468 3200-25J-084 FILTERED DUST C2-3230-DC-162 3467 3200-25J-064 FILTERED DUST C2-3230-DC-163 3466 3200-25J-064 FILTERED DUST C2-3230-DC-041 3465 3200-25J-064 HPGR FEED BYPASS HPGR FEED CONVEYOR, C2-3230-DV-031 4211 3200-25J-049 HPGR FEED BYPASS HPGR FEED CONVEYOR, C2-3230-DV-031 4212 3200-25J-051 HPGR FEED BYPASS HPGR FEED CONVEYOR, C2-3230-DV-031 4213 3200-25J-053 HPGR FEED BYPASS HPGR FEED CONVEYOR, C2-3230-DV-031 4214 3200-25J-055 3230 07341 VE 3230 07341 VT 3230 07342 LE 3230 07342 LSL 3230 07342 LA 3230 07341 VI 3230 07351 VE 3230 07351 VT 3230 07352 LE 3230 07352 LSL 3230 07352 LA 3230 07351 VI 3230 07361 VE 3230 07361 VT 3230 07362 LE 3230 07362 LSL 3230 07362 LA 3230 07361 VI H,P2 HH,P1 H,P2 HH,P1 H,P2 HH,P1 L,P2 L,P2 L,P2 IMAGE IMAGE C D E F B C2-3240-DC-234 T5 T5 T5 A - F A - F A - F A - F A SIZE: C2-3230-ZE-011 CV-017 BELT RIP DETECTOR DUST COARSE ORE SCREENING DUST COLLECTOR, 4174
  • 79.
    T1 GEAR REDUCER GEAR REDUCER GEAR REDUCER RHS 3230 07403 B SE 3230 07403 B ST 3230 07403B SI 3230 07403 SDI 3230 07483 XA 3230 07404 ZAH 3230 07407 A TI 3230 07410 SE 3230 07443 TI 3230 07483 II 3230 07404 ZAH 3230 07404 ZAHH 3230 07407 A TE 3230 07402 HSA A-D 3230 07483 G TI 3230 07402 HSS A-D 3230 07415 B LAH P1 3230 07415 B LSH 3230 07483 H TI BRG REAR H, P2 HH, P1 3230 07413 B XE 3230 07413 A XE 3230 07413 XIH 3230 07413 B XY 3230 07413 A XY 3230 07408 A XS TEAR 3230 07431 B YI 3230 07443 TE 3230 07406 A TI H, P2 HH, P1 3230 07482 H TE 3230 07482 G TE 3230 07410 WIT 3230 07481 G TE 3230 07403 A SI 3230 07482 H TI BRG REAR H, P2 HH, P1 3230 07485 II 3230 07421 SSL 3230 07422 B ZS 3230 07410 WE 3230 07485 HS J/SP 3230 07485 XA 3230 07421 SE 3230 07421 SAL P1 3230 07422 A ZS 3230 07405 ZAHH RHS A-E 3230 07401 HSA 3230 07401 HSA 3230 07463 TI 3230 07431 A YT 3230 07431 B YT 3230 07483 H TE 3230 07404 ZSH A-E 3230 07403 A ST 3230 07482 II 3230 07422 A ZA 3230 07422 B ZA P1 3230 07453 TE 3230 07483 G TE 3230 07402 HSS 3230 07401 HSS 3230 07408 XA P1 3230 07453 TI 3230 07481 H TI BRG REAR H, P2 HH, P1 3230 07408 B XS 3230 07405 ZSHH 3230 07402 HSA 3230 07405 ZSH 3230 07406 A TE 3230 07410 WI 3230 07415 A LSH 3230 07431 A YI 3230 07403 A SE 3230 07463 TE 3230 07401 HSS RHS 3230 07404 ZSHH 3230 07481 G TI 3230 07482 G TI 3230 07481 XA 3230 07481 II 3230 07415 A LAH P1 3230 07482 XA FAULT 3230 07481 H TE DUST COARSE ORE SCREENING DUST COLLECTOR 1967 3200-25J-020 TER. CRUSHER PRODUCT HPGR PRODUCT CONVEYOR NO.2, C2-3230-CV-028 2047 3200-25J-076 TER. CRUSHER PRODUCT HPGR CRUSHER NO.7, C2-3230-CR-027 1965 3200-25J-061 TER. CRUSHER PRODUCT HPGR CRUSHER NO.8, C2-3230-CR-028 1966 3200-25J-063 TER. CRUSHER PRODUCT HPGR CRUSHER NO.5, C2-3230-CR-025 1963 3200-25J-057 TER. CRUSHER PRODUCT HPGR CRUSHER NO.6, C2-3230-CR-026 1964 3200-25J-059 P1 H, P1 FAULT LHS A-D P1 LHS A-E P2 RHS P1 LHS LHS P1 P1 H, P2 RHS LHS E-H, J-L P2 BRG FRONT H, P2 HH, P1 FAULT H, P2 HH, P1 A-D WRIM RHS BRG FRONT H, P2 HH, P1 BRG FRONT H, P2 HH, P1 DUCTING A-E P2 E-H J-L WRIM L1, P1 HPGR PRODUCTION L, P2 J-L E-H E-H, J-L WRIM A - N H, P2 HH, P1 H, P2 HH, P1 LHS H, P2 HH, P1 A,B FAULT P1 C2-3230-ST-076 T5 3230 07411 XA + SIZE: C2-3230-SL-038 CV-027 BELT SCALE SIZE: 2430 mm MOTOR: 2700.00 kW C2-3230-CV-027 HPGR DISCHARGE CONVEYOR NO.2 V ES V C2-3230-MA-032 C2-3230-BN-062 C2-3230-ST-472 V SIZE: C2-3230-MA-032 CV-027 SELF CLEANING MAGNET SIZE: C2-3230-ST-472 CV-027 TRAMP METAL CHUTE SIZE: C2-3230-BN-062 CV-027 TRAMP METAL BIN V V C2-3230-CV-027 T5 V AG KM LT ISSUED FOR CLIENT REVIEW 23-Dec-11 B RP ISSUED FOR COMBINED REVIEW 23-Jun-11 A 12/23/2011 K.MUNDY A.GUNSON T. OH L.TAMELIN 1/3/2012 10:49:14 AM WBS: 3230 B PIPING AND INSTRUMENTATION DIAGRAM TERTIARY CRUSHING 3200-25J-074 HPGR DISCHARGE CONVEYOR NO. 2 SIZE: C2-3230-ST-076 HPGR DISCHARGE CONVEYOR NO. 2 HEAD/DISCHARGE CHUTE C2-3230-SL-038 V V V V V V V V V T5 V V V V V V V ES ES ES D 4 F B A 3 2 1 5 6 8 E 7 C REV. APPROVED CHK. DES. REV. DATE REVISION DESCRIPTION CLIENT LEAD ENGINEER SCALE DRAWING NUMBER CHECK DESIGN CHECK DRAWING DESIGNED BY DRAWN BY APPROVAL DATE APPROVAL DATE APPROVED CHK. DES. REV. DATE REVISION DESCRIPTION REFERENCE DRAWING No. 1:100 0 1:200 5m 10m 0 5m 10m 15m 20m 1:500 10m 0 20m 30m 40m 50m 1:1000 0 100m 50m 1:20 0 0.5m 1m 1.5m 2m 0 1:25 0.5m 1m 1.5m 1:33 1/3 2.5m 2m 0 1m 2m 3m 0 1:50 1m 2m 3m 4m 5m CAD FILE NAME: P:0CAD000SPEM** MODEL UPDATED: DWG. FILE UPDATED: MANUAL CHANGES MADE: YES NO YES NO YES NO PROJECT MANAGER ENGINEERING MANAGER AREA PROJECTENGINEER REFERENCE DRAWINGS SAFETY SHARE: APPROVAL DATE CONTRACT NO. SAFETY SHARE : BA6CVA1.IGR NOTICE: THIS DRAWING HAS NOT BEEN PUBLISHED AND IS THE SOLE PROPERTY OF FLUOR AND IS LENT TO THE BORROWER FOR THEIR CONFIDENTIAL USE ONLY, AND IN CONSIDERATION OF THE LOAN OF THIS DRAWING, THE BORROWER PROMISES AND AGREES TO RETURN IT UPON REQUEST AND AGREES THAT IT WILL NOT BE REPRODUCED, COPIED LENT OR OTHERWISE DISPOSED OF DIRECTLY OR INDIRECTLY, NOR USED FOR ANY OTHER PURPOSE OTHER THAN WHICH IT IS FURNISHED. NONE Apr 2011 240K-C2- FILTERED DUST C2-3230-DC-191 4224 3200-25J-064 FILTERED DUST C2-3230-DC-192 4225 3200-25J-064 FILTERED DUST C2-3230-DC-193 4226 3200-25J-064 FILTERED DUST C2-3230-DC-079 4227 3200-25J-064 C2-3230-ZE-012 HPGR FEED BYPASS HPGR FEED DIVERTER C2-3230-DV-035 4228 3200-25J-057 HPGR FEED BYPASS HPGR FEED DIVERTER C2-3230-DV-036 4229 3200-25J-059 HPGR FEED BYPASS HPGR FEED DIVERTER C2-3230-DV-037 4230 3200-25J-061 HPGR FEED BYPASS HPGR FEED DIVERTER C2-3230-DV-038 4231 3200-25J-063 IMAGE IMAGE 3230 07441 VE 3230 07442 LE 3230 07442 LSI 3230 07441 VT 3230 07441 VI 3230 07442 LA H,P2 HH,P1 3230 07451 VE 3230 07452 LE 3230 07452 LSI 3230 07451 VT 3230 07451 VI 3230 07452 LA H,P2 HH,P1 3230 07461 VE 3230 07462 LE 3230 07462 LSI 3230 07461 VT 3230 07461 VI 3230 07462 LA H,P2 HH,P1 C D E F B C2-3240-DC-045 A A - F A - F A - F A - F SIZE: C2-3230-ZE-012 CV-027 BELT RIP DETECTOR
  • 80.
    GEAR REDUCER GEAR REDUCER GEAR REDUCER GEAR REDUCER GEAR REDUCER GEAR REDUCER LHS J D, E OVER TRAVEL 3230 07581 XA 3230 07581 II 3230 07507 A TI H,P2 HH, P1 RHS 3230 07512 B ZS 3230 07505 ZSH 3230 07504 ZSH 3230 07501 HSS LHS 3230 07504 ZAHH P1 3230 07505 ZAHH 3230 07502 HSA J RLS 3230 07506 A TI 3230 07503 A ST 3230 07581 HS J/SP 3230 07581 G TE 3230 07581 H TI BRG FRONT H, P2 HH, P1 3230 07507 B TE 3230 07504 ZSHH 3230 07513 XI 3230 07582 H TI BRG FRONT H, P2 HH, P1 3230 07512 B ZA P1 3230 07582 II 3230 07504 ZSH LHS 3230 07506 B TI 3230 07501 HSS 3230 07513 XY B 3230 07513 XY 3230 07512 C ZS 3230 07513 XE 3230 07513 XE 3230 07506 B TE LHS RHS 3230 07582 G TI BRG REAR H, P2 HH, P1 3230 07505 ZAH 3230 07581 H TE 3230 07582 H TE 3230 07501 HSA P1 3230 07503 A SI 3230 07508 A XS 3230 07518 FIC HH, P1 H, P2 L, P2 LL, P1 3230 07518 FIT M 3230 07512 A ZA 3230 07503 B SE 3230 07503 B ST 3230 07505 ZAHH P1 A-C 3230 07505 ZAH 3230 07504 ZAHH P1 A-C 3230 07504 ZAH 3230 07503 B SI 3230 07503 SDI H, P1 3230 07582 G TE 3230 07502 HSS RHS 3230 07504 ZAH 3230 07508 XA A,B 3230 07502 HSS RHS 3230 07583 XA 3230 07583 A SIC 3230 07583 XL RDY/RUN SP TRIP 3230 07583 XS F/R L/R 3230 07583 XY 3230 07583 II 3230 07506 A TE 3230 07583 HS 3230 07583 B SIC 3230 07541 VE 3230 07552 LE 3230 07551 VE 3230 07582 XA 3230 07507 A TE 3230 07512 D ZS 3230 07512 C ZA 3230 07505 ZSH 3230 07553 TE 3230 07543 TI 3230 07504 ZSHH LHS RHS D, E 3230 07542 LSL 3230 07542 LE 3230 07505 ZSHH 3230 07502 HSA 3230 07505 ZSHH 3230 07541 VT 3230 07542 LA L,P2 3230 07552 LSL 3230 07551 VT 3230 07541 VI H,P2 HH,P1 3230 07552 LA L,P2 3230 07551 VI H,P2 HH,P1 3230 07507 B TI 3230 07512 D ZA OVER TRAVEL 3230 07512 A ZS 3230 07553 TI 3230 07582 HS J/SP 3230 07501 HSA LHS J 3230 07581 G TI BRG REAR H, P2 HH, P1 3230 07543 TE 3230 07508 B XS 3230 07503 A SE HH, P1 H, P2 HH, P1 H, P2 FRESH WATER CRUSHING AREA HEAT EXCH., C2-3200-HX-773/774/775 3489 3200-25J-082 TERITARY CRUSHER BALL MILL FEED SURGE BINS, C2-3310-BN-101/201/301 1291 3300-25J-001 TERITARY CRUSHER HPGR DISCHARGE CONVEYOR NO.1, 1292 3200-25J-073 DUST COARSE ORE SCREENING DUST COLLECTOR, 3257 3200-25J-020 FAULT D, E LHS END TRAVEL RUN PERMISSIVE P1 A-C A-C J P2 P1 LHS RHS P2 B C2-3230-CV-017 A A TO N P1 A-H RHS RHS P2 H1, P2 A-H A P2 RHS LHS RHS H, P2 HH, P1 LHS SP P2 P2, P1 P2 P1 LHS A-H P2, P1 A-H P1 A-H P1 RHS FAULT D, E TEAR LHS END TRAVEL T4 C2-3230-CV-018 C2-3230-ST-260 V V V V 2" C2-3230-ZE-014 ES 3230 07518 FV + 3230 07518 FE + T4 C2-3230-TR-018 SIZE: C2-3230-ST-260 CV-018 CONVEYOR HEAD CHUTE SIZE: MOTOR: C2-3230-TR-018 CV-018 TRIPPER CAR AG KM LT ISSUED FOR CLIENT REVIEW 23-Dec-11 B RP ISSUED FOR COMBINED REVIEW 23-Jun-11 A 12/23/2011 K. MUNDY A. GUNSON T. OH L. TAMELIN 1/3/2012 1:00:59 PM WBS: 3230 B PIPING AND INSTRUMENTATION DIAGRAM TERTIARY CRUSHING 3200-25J-075 HPGR PRODUCT CONVEYOR NO. 1 3230 07511 XA + 3230-WF- -C1A-2"-N V V SIZE: MATERIAL: MOTOR: C2-3230-CV-018 HPGR PRODUCT CONVEYOR NO.1 V V ES D 4 F B A 3 2 1 5 6 8 E 7 C REV. APPROVED CHK. DES. REV. DATE REVISION DESCRIPTION CLIENT LEAD ENGINEER SCALE DRAWING NUMBER CHECK DESIGN CHECK DRAWING DESIGNED BY DRAWN BY APPROVAL DATE APPROVAL DATE APPROVED CHK. DES. REV. DATE REVISION DESCRIPTION REFERENCE DRAWING No. 1:100 0 1:200 5m 10m 0 5m 10m 15m 20m 1:500 10m 0 20m 30m 40m 50m 1:1000 0 100m 50m 1:20 0 0.5m 1m 1.5m 2m 0 1:25 0.5m 1m 1.5m 1:33 1/3 2.5m 2m 0 1m 2m 3m 0 1:50 1m 2m 3m 4m 5m CAD FILE NAME: P:0CAD000SPEM** MODEL UPDATED: DWG. FILE UPDATED: MANUAL CHANGES MADE: YES NO YES NO YES NO PROJECT MANAGER ENGINEERING MANAGER AREA PROJECTENGINEER REFERENCE DRAWINGS SAFETY SHARE: APPROVAL DATE CONTRACT NO. SAFETY SHARE : BA6CVA1.IGR NOTICE: THIS DRAWING HAS NOT BEEN PUBLISHED AND IS THE SOLE PROPERTY OF FLUOR AND IS LENT TO THE BORROWER FOR THEIR CONFIDENTIAL USE ONLY, AND IN CONSIDERATION OF THE LOAN OF THIS DRAWING, THE BORROWER PROMISES AND AGREES TO RETURN IT UPON REQUEST AND AGREES THAT IT WILL NOT BE REPRODUCED, COPIED LENT OR OTHERWISE DISPOSED OF DIRECTLY OR INDIRECTLY, NOR USED FOR ANY OTHER PURPOSE OTHER THAN WHICH IT IS FURNISHED. NONE Apr 2011 240K-C2- SIZE: C2-3230-ZE-014 CV-018 BELT RIP DETECTOR ES ES C2-3240-DC-234 PRODUCT
  • 81.
    GEAR REDUCER GEAR REDUCER GEAR REDUCER GEAR REDUCER GEAR REDUCER GEAR REDUCER OVER TRAVEL D, E J LHS 3230 07613 XE 3230 07605 ZAHH P1 A-C 3230 07683 XY 3230 07612C ZA 3230 07612 A ZA 3230 07604 ZSH 3230 07607 A TE 3230 07605 ZSH 3230 07605 ZAH 3230 07612 D ZS 3230 07604 ZAHH P1 A-C 3230 07604 ZAHH P1 3230 07601 HSA P1 3230 07683 II 3230 07607 A TI H, P2 HH, P1 RHS 3230 07605 ZAHH 3230 07604 ZAH 3230 07613 XY 3230 07681 HS J/SP 3230 07605 ZAH 3230 07681 G TE 3230 07681 H TE 3230 07605 ZSHH 3230 07601 HSA LHS J 3230 07605 ZSH 3230 07681 G TI BRG REAR H, P2 HH, P1 3230 07682 XA 3230 07607 A TI 3230 07683 XL TRIP RDY/RUN SP 3230 07681 H TI BRG FRONT H, P2 HH, P1 3230 07682 G TE 3230 07603 A ST 3230 07603 A SI 3230 07682 H TE 3230 07508 XA A,B 3230 07612 C ZS 3230 07682 II 3230 07681 II 3230 07682 G TI BRG REAR H, P2 HH, P1 3230 07613 XY B 3230 07602 HSA 3230 07601 HSS LHS 3230 07653 L TI 3230 07683 B SIC 3230 07683 XA 3230 07682 H TI BRG FRONT H, P2 HH, P1 3230 07604 ZSH LHS 3230 07681 XA 3230 07602 HSA J RLS 3230 07613 XE 3230 07608 A XS 3230 07653 L TE 3230 07612 B ZS 3230 07601 HSS 3230 07643 TI 3230 07607 A TE 3230 07683 XS F/R L/R 3230 07605 ZSHH 3230 07608 B XS 3230 07612 A ZS 3230 07604 ZSHH 3230 07612 D ZA OVER TRAVEL 3230 07683 HS 3230 07604 ZAH 3230 07643 TE 3230 07603 A SE 3230 07613 XI 3230 07682 HS J/SP 3230 07603 SDI H, P1 3230 07602 HSS RHS 3230 07602 HSS RHS 3230 07603 B ST 3230 07603 B SI 3230 07612 B ZA P1 3230 07603 B SE 3230 07604 ZSHH RHS D, E LHS 3230 07683 A SIC HH, P1 H, P2 HH, P1 H, P2 DUST COARSE ORE SCREENING DUST COLLECTOR, 3300 3200-25J-064 TER. CRUSHER PRODUCT BALL MILL FEED SURGE BINS, C2-3310-BN-401/501/601 1548 3300-25J-010 TERITARY CRUSHER HPGR DISCHARGE CONVEYOR NO.2, 2047 3200-25J-074 FRESH WATER CRUSHING AREA HEAT EXCH., C2-3200-HX-773/774/775 3490 3200-25J-082 END TRAVEL TEAR LHS RHS A B P1 RHS P2 P2 END TRAVEL P2 P1 FAULT D, E LHS P1 RUN PERMISSIVE SP A-H D, E P1 A-H FAULT P2 LHS P2 P1 A-C RHS A A-H RHS P1 A TO N LHS A-H H, P2 HH, P1 LHS A-C J A-H H1, P2 P2 RHS C2-3230-CV-027 AG KM LT ISSUED FOR CLIENT REVIEW 23-Dec-11 B RP ISSUED FOR COMBINED REVIEW 23-Jun-11 A 12/23/2011 K. MUNDY A. GUNSON T. OH L. TAMELIN 1/3/2012 3:00:11 PM WBS: 3230 B PIPING AND INSTRUMENTATION DIAGRAM TERTIARY CRUSHING 3200-25J-076 HPGR PRODUCT CONVEYOR NO. 2 V SIZE: C2-3230-ST-261 CV-028 CONVEYOR TRIPPER CAR CHUTE C2-3230-CV-028 3230 07611 XA + C2-3230-TR-028 V V V T4 T4 V C2-3230-ST-261 V SIZE: 2438 mm MATERIAL: MOTOR: 894.00 kW C2-3230-CV-028 HPGR PRODUCT CONVEYOR NO.2 SIZE: MOTOR: C2-3230-TR-028 CV-028 TRIPPER CART V V ES V C2-3230-ZE-015 V V V D 4 F B A 3 2 1 5 6 8 E 7 C REV. APPROVED CHK. DES. REV. DATE REVISION DESCRIPTION CLIENT LEAD ENGINEER SCALE DRAWING NUMBER CHECK DESIGN CHECK DRAWING DESIGNED BY DRAWN BY APPROVAL DATE APPROVAL DATE APPROVED CHK. DES. REV. DATE REVISION DESCRIPTION REFERENCE DRAWING No. 1:100 0 1:200 5m 10m 0 5m 10m 15m 20m 1:500 10m 0 20m 30m 40m 50m 1:1000 0 100m 50m 1:20 0 0.5m 1m 1.5m 2m 0 1:25 0.5m 1m 1.5m 1:33 1/3 2.5m 2m 0 1m 2m 3m 0 1:50 1m 2m 3m 4m 5m CAD FILE NAME: P:0CAD000SPEM** MODEL UPDATED: DWG. FILE UPDATED: MANUAL CHANGES MADE: YES NO YES NO YES NO PROJECT MANAGER ENGINEERING MANAGER AREA PROJECTENGINEER REFERENCE DRAWINGS SAFETY SHARE: APPROVAL DATE CONTRACT NO. SAFETY SHARE : BA6CVA1.IGR NOTICE: THIS DRAWING HAS NOT BEEN PUBLISHED AND IS THE SOLE PROPERTY OF FLUOR AND IS LENT TO THE BORROWER FOR THEIR CONFIDENTIAL USE ONLY, AND IN CONSIDERATION OF THE LOAN OF THIS DRAWING, THE BORROWER PROMISES AND AGREES TO RETURN IT UPON REQUEST AND AGREES THAT IT WILL NOT BE REPRODUCED, COPIED LENT OR OTHERWISE DISPOSED OF DIRECTLY OR INDIRECTLY, NOR USED FOR ANY OTHER PURPOSE OTHER THAN WHICH IT IS FURNISHED. NONE Apr 2011 240K-C2- M 3230 07618 FE + 3230 07618 FV + 3230 07618 FIT 3230 07618 FIC HH, P1 H, P2 L, P2 LL, P1 ES 2" 3230-WF- -C1A-2"-N C2-3230-ZE-015 CV-028 SENSOR GUARD BELT RIP DETECTOR 3230 07651 VE 3230 07652 LE 3230 07642 LE 3230 07641 VE 3230 07641 VT 3230 07651 VT 3230 07652 LSL 3230 07642 LSL 3230 07642 LA 3230 07652 LA 3230 07651 VI 3230 07641 VI H,P2 HH,P1 H,P2 HH,P1 L,P2 L,P2 A - G A - G A - G A - G A SENSOR GUARD G F E B C D C2=3240-DC-045 ES ES
  • 82.
    D 4 F B A 3 2 1 5 68 E 7 C REV. APPROVED CHK. DES. REV. DATE REVISION DESCRIPTION CLIENT LEAD ENGINEER SCALE DRAWING NUMBER CHECK DESIGN CHECK DRAWING DESIGNED BY DRAWN BY APPROVAL DATE APPROVAL DATE APPROVED CHK. DES. REV. DATE REVISION DESCRIPTION REFERENCE DRAWING No. 1:100 0 1:200 5m 10m 0 5m 10m 15m 20m 1:500 10m 0 20m 30m 40m 50m 1:1000 0 100m 50m 1:20 0 0.5m 1m 1.5m 2m 0 1:25 0.5m 1m 1.5m 1:33 1/3 2.5m 2m 0 1m 2m 3m 0 1:50 1m 2m 3m 4m 5m CAD FILE NAME: P:0CAD000SPEM** MODEL UPDATED: DWG. FILE UPDATED: MANUAL CHANGES MADE: YES NO YES NO YES NO PROJECT MANAGER ENGINEERING MANAGER AREA PROJECTENGINEER REFERENCE DRAWINGS SAFETY SHARE: APPROVAL DATE CONTRACT NO. SAFETY SHARE : BA6CVA1.IGR NOTICE: THIS DRAWING HAS NOT BEEN PUBLISHED AND IS THE SOLE PROPERTY OF FLUOR AND IS LENT TO THE BORROWER FOR THEIR CONFIDENTIAL USE ONLY, AND IN CONSIDERATION OF THE LOAN OF THIS DRAWING, THE BORROWER PROMISES AND AGREES TO RETURN IT UPON REQUEST AND AGREES THAT IT WILL NOT BE REPRODUCED, COPIED LENT OR OTHERWISE DISPOSED OF DIRECTLY OR INDIRECTLY, NOR USED FOR ANY OTHER PURPOSE OTHER THAN WHICH IT IS FURNISHED. NONE Apr 2011 240K-C2- AG KM LT ISSUED FOR CLIENT REVIEW 23-Dec-11 B NOT USED A 12/23/2011 K. MUNDY A. GUNSON T. OH L. TAMELIN 1/3/2012 12:59:27 PM WBS: 3230 B PIPING AND INSTRUMENTATION DIAGRAM TERTIARY CRUSHING 3200-25J-077 HPGR REJECT CONVEYOR NO. 1 HPGR REJECT CONVEYOR SYSTEM REMOVED. THIS DWG RESERVED FOR FUTURE USE.
  • 83.
    D 4 F B A 3 2 1 5 68 E 7 C REV. APPROVED CHK. DES. REV. DATE REVISION DESCRIPTION CLIENT LEAD ENGINEER SCALE DRAWING NUMBER CHECK DESIGN CHECK DRAWING DESIGNED BY DRAWN BY APPROVAL DATE APPROVAL DATE APPROVED CHK. DES. REV. DATE REVISION DESCRIPTION REFERENCE DRAWING No. 1:100 0 1:200 5m 10m 0 5m 10m 15m 20m 1:500 10m 0 20m 30m 40m 50m 1:1000 0 100m 50m 1:20 0 0.5m 1m 1.5m 2m 0 1:25 0.5m 1m 1.5m 1:33 1/3 2.5m 2m 0 1m 2m 3m 0 1:50 1m 2m 3m 4m 5m CAD FILE NAME: P:0CAD000SPEM** MODEL UPDATED: DWG. FILE UPDATED: MANUAL CHANGES MADE: YES NO YES NO YES NO PROJECT MANAGER ENGINEERING MANAGER AREA PROJECTENGINEER REFERENCE DRAWINGS SAFETY SHARE: APPROVAL DATE CONTRACT NO. SAFETY SHARE : BA6CVA1.IGR NOTICE: THIS DRAWING HAS NOT BEEN PUBLISHED AND IS THE SOLE PROPERTY OF FLUOR AND IS LENT TO THE BORROWER FOR THEIR CONFIDENTIAL USE ONLY, AND IN CONSIDERATION OF THE LOAN OF THIS DRAWING, THE BORROWER PROMISES AND AGREES TO RETURN IT UPON REQUEST AND AGREES THAT IT WILL NOT BE REPRODUCED, COPIED LENT OR OTHERWISE DISPOSED OF DIRECTLY OR INDIRECTLY, NOR USED FOR ANY OTHER PURPOSE OTHER THAN WHICH IT IS FURNISHED. NONE Apr 2011 240K-C2- AG KM LT ISSUED FOR CLIENT REVIEW 23-Dec-11 B NOT USED A 12/23/2011 K. MUNDY A. GUNSON T. OH L. TAMELIN 1/3/2012 12:59:05 PM WBS: 3230 B PIPING AND INSTRUMENTATION DIAGRAM TERTIARY CRUSHING 3200-25J-078 HPGR REJECT CONVEYOR NO. 2 HPGR REJECT CONVEYOR SYSTEM REMOVED. THIS DWG RESERVED FOR FUTURE USE.
  • 84.
    D 4 F B A 3 2 1 5 68 E 7 C REV. APPROVED CHK. DES. REV. DATE REVISION DESCRIPTION CLIENT LEAD ENGINEER SCALE DRAWING NUMBER CHECK DESIGN CHECK DRAWING DESIGNED BY DRAWN BY APPROVAL DATE APPROVAL DATE APPROVED CHK. DES. REV. DATE REVISION DESCRIPTION REFERENCE DRAWING No. 1:100 0 1:200 5m 10m 0 5m 10m 15m 20m 1:500 10m 0 20m 30m 40m 50m 1:1000 0 100m 50m 1:20 0 0.5m 1m 1.5m 2m 0 1:25 0.5m 1m 1.5m 1:33 1/3 2.5m 2m 0 1m 2m 3m 0 1:50 1m 2m 3m 4m 5m CAD FILE NAME: P:0CAD000SPEM** MODEL UPDATED: DWG. FILE UPDATED: MANUAL CHANGES MADE: YES NO YES NO YES NO PROJECT MANAGER ENGINEERING MANAGER AREA PROJECTENGINEER REFERENCE DRAWINGS SAFETY SHARE: APPROVAL DATE CONTRACT NO. SAFETY SHARE : BA6CVA1.IGR NOTICE: THIS DRAWING HAS NOT BEEN PUBLISHED AND IS THE SOLE PROPERTY OF FLUOR AND IS LENT TO THE BORROWER FOR THEIR CONFIDENTIAL USE ONLY, AND IN CONSIDERATION OF THE LOAN OF THIS DRAWING, THE BORROWER PROMISES AND AGREES TO RETURN IT UPON REQUEST AND AGREES THAT IT WILL NOT BE REPRODUCED, COPIED LENT OR OTHERWISE DISPOSED OF DIRECTLY OR INDIRECTLY, NOR USED FOR ANY OTHER PURPOSE OTHER THAN WHICH IT IS FURNISHED. NONE Apr 2011 240K-C2- AG KM LT ISSUED FOR CLIENT REVIEW 23-Dec-11 B NOT USED A 12/23/2011 K. MUNDY A. GUNSON T. OH L. TAMELIN 1/3/2012 3:04:11 PM WBS: 3230 B PIPING AND INSTRUMENTATION DIAGRAM TERTIARY CRUSHING 3200-25J-079 TERTIARY CRUSHER EFFLUENT T3 AFD T3 3230 07914 FI 3230 07915 PI L, P2 3230 07984 XA 3230 07902 LIC 3230 07984 HS 3230 07904 FI 3230 07902 LE 3230 07905 PI 3230 07914 FIT 3230 07985 XA 3230 07902 LIT 3230 07985 HS M M 3230 07984 II 3230 07904 FIT 3230 07901 FIT 3230 07901 FIC M 3230 07915 PIT 3230 07985 II 3230 07905 PIT L, P2 LL, P1 L, P2 L, P2 LL, P1 FAULT AFD J/SP J/SP FAULT C2-3230-PP-059A C2-3230-BX-030 SIZE: MATERIAL: MOTOR: C2-3230-PP-059A TERTIARY CRUSHING COOLING WATER RETURN PUMP NO.2 3"x2" 3"x2" 3230 07904 FE + 2"x1-1/4" 2"x1-1/4" SIZE: MATERIAL: CAPACITY: TRIM:3230-SL-1010-C1B C2-3230-BX-030 COOLING WATER RETURN PUMPBOX C2-3230-PP-029A 3"x2" 3230 07914 FE + 3230 07901 FV + 3230 07901 FE + 3"x2" SIZE: MATERIAL: MOTOR: C2-3230-PP-029A TERTIARY CRUSHING COOLING WATER RETURN PUMP NO.1 ES ES ES PROCESS WATER 3481 3900-25J-014 GLAND SEAL WATER 3479 3900-25J-023 C2-3230-PP-042 3230-SL-1014-C1B-6"-N 3230-WG-1033-C1A-2"-N 3230-WR-2007-C1A-3"-N 3230-SL-1013-C1A-6"-N 3230-WG-1031-C1A-2"-N 3230-SL-1790-C1B- -N 3230-SL-1791-C1B- -N 3230-SL-1788-C1B- -N 3230-SL-1789-C1B- -N C2-3220-PP-032 C2-3240-BX-023 SLURRY COARSE SCREENING EFFLUENT PUMPBOX, 3672 3200-25J-019 SUMP CONTENTS TERTIARY CRUSHING AREA SUMP PUMP NORTH, 3671 3200-25J-049 C2-3230-PP-044 SUMP CONTENTS SECONDARY CRUSHING AREA SUM PUMP EAST, 1823 3200-25J-045 SUMP CONTENTS SECONDARY CRUSHING AREA SUMP PUMP WEST, 3647 3200-25J-046 C2-3220-PP-033 BELT WASH CV-031 BELT CLEANER STATION, C2-3240-ZM-019 3252 3200-25J-025 BELT WASH CV-041 BELT CLEANER STATION, C2-3240-ZM-029 3249 3200-25J-026 FRESH WATER CRUSHING AREA HEAT EXCHANGER NO.1 TO 3, 4003 3200-25J-082 C2-3230-773/774/775 3200-WF-1456-C1A-10"-N 3230-WF-1234-C1A-2"-N 3230-WF-1235-C1A-2"-N 3230-SL-1011-C1B-6"-N 3230-SL-1012-C1B-6"-N 3230-SL- -C1B- -N SUMP CONTENTS TERTIARY CRUSHING AREA SUMP PUMP SOUTH, 2050 3200-25J-057
  • 85.
    D 4 F B A 3 2 1 5 68 E 7 C REV. APPROVED CHK. DES. REV. DATE REVISION DESCRIPTION CLIENT LEAD ENGINEER SCALE DRAWING NUMBER CHECK DESIGN CHECK DRAWING DESIGNED BY DRAWN BY APPROVAL DATE APPROVAL DATE APPROVED CHK. DES. REV. DATE REVISION DESCRIPTION REFERENCE DRAWING No. 1:100 0 1:200 5m 10m 0 5m 10m 15m 20m 1:500 10m 0 20m 30m 40m 50m 1:1000 0 100m 50m 1:20 0 0.5m 1m 1.5m 2m 0 1:25 0.5m 1m 1.5m 1:33 1/3 2.5m 2m 0 1m 2m 3m 0 1:50 1m 2m 3m 4m 5m CAD FILE NAME: P:0CAD000SPEM** MODEL UPDATED: DWG. FILE UPDATED: MANUAL CHANGES MADE: YES NO YES NO YES NO PROJECT MANAGER ENGINEERING MANAGER AREA PROJECTENGINEER REFERENCE DRAWINGS SAFETY SHARE: APPROVAL DATE CONTRACT NO. SAFETY SHARE : BA6CVA1.IGR NOTICE: THIS DRAWING HAS NOT BEEN PUBLISHED AND IS THE SOLE PROPERTY OF FLUOR AND IS LENT TO THE BORROWER FOR THEIR CONFIDENTIAL USE ONLY, AND IN CONSIDERATION OF THE LOAN OF THIS DRAWING, THE BORROWER PROMISES AND AGREES TO RETURN IT UPON REQUEST AND AGREES THAT IT WILL NOT BE REPRODUCED, COPIED LENT OR OTHERWISE DISPOSED OF DIRECTLY OR INDIRECTLY, NOR USED FOR ANY OTHER PURPOSE OTHER THAN WHICH IT IS FURNISHED. NONE Apr 2011 240K-C2- AG KM LT ISSUED FOR CLIENT REVIEW 23-Dec-11 B NOT USED A 12/23/2011 K.MUNDY A.GUNSON T. OH L.TAMELIN 1/3/2012 12:57:32 PM WBS: 3200 B PIPING AND INSTRUMENTATION DIAGRAM SECONDARY/TERTIARY CRUSHING AND CONVEYING 3200-25J-081 CLOSED COOLING SYSTEM SH. 2 OF 2 C2-3230-PP-768 C2-3230-PP-767 3200 08181 II 3200 08181 XA SIZE: MATERIAL: MOTOR: C2-3230-PP-768 CRUSHING COOLING SYSTEM PUMP NO. 2 (STAND BY) SIZE: MATERIAL: MOTOR: C2-3230-PP-767 CRUSHING COOLING SYSTEM PUMP NO. 1 3200 08181 HS FAULT J/SP T1 T1 3200 08182 II 3200 08182 XA 3200 08182 HS FAULT J/SP 3230-WF-1464-C1A-6"-N 3230-WF-1227-C1A-6"-N 3200-WF-1456-C1A-6"-N CLOSED LOOP CWS CRUSHING AREA HEAT EXCHANGER NO.1 TO 3, 3675 3200-25J-082 DOMESTIC WATER DISTRIBUTION 3633 5400-25J-022 3230-WD-1040-G1A-2"-N 3230-WF-1463-C1A-8"-N 3230-WF-1467-C1A-10"-N 3230-WF-1466-C1A-10"-N 3200 08181 LE 3200 08101 LV + 3200 08181 LIC 3200 08101 LIT 3230-WF-1465-C1A-8"-N 3230-WF- -C1A-4"-N 3200 PCV + CLOSED LOOP CWS DISTRIBUTION 4004 3200-25J-083 3230-WF-1227-C1A-6"-N C2-3230-TK-766 SIZE: MATERIAL: CAPACITY: TRIM: C2-3230-TK-766 CRUSHER COOLING SYSTEM TANK C2-3230-HX-773/774/775 WATER TREATMENT DOSING SYSTEM VENDOR SUPPLY FLUOR VENDOR 3200-RE- -S1A-1"-N
  • 86.
    3200 08212 PDI 3200 08212 A PI 3200 08212 B PI HH 3200 08212A PIT 3200 08212 B PIT M 3200 08206 TI 3200 08211 FIT 3200 08211 FI 3200 08215 ZS OP/CL 3200 08215 XA MISMATCH 3200 08213 TI 3200 08207 TE 3200 08207 TIT 3200 08207 TIC 3200 08218 AE 3200 08218 AI 3200 08218 AIT 3200 08228 AE 3200 08222 PIT 3200 08222 B PIT 3200 08225 ZS OP/CL M 3200 08202 PDI 3200 08202 B PI HH 3200 08202 A PI 3200 08208 AIT 3200 08201 FIT 3200 08201 FI 3200 08205 XA MISMATCH 3200 08216 TI 3200 08208 AI M 3200 08222 PDI 3200 08222 B PI HH 3200 08203 TI 3200 08208 AE 3200 08202 A PIT 3200 08202 B PIT 3200 08222 PI 3200 08205 ZS OP/CL 3200 08228 AIT 3200 08221 FIT 3200 08221 FI 3200 08225 XA MISMATCH 3200 08226 TI 3200 08228 AI 3200 08223 TI H H H CLOSED LOOP CWS CRUSHING COOLING SYSTEM TANK, C2-3230-TK-766 3675 3200-25J-081 FRESH WATER HEADER 3683 5100-25J-014 FRESH WATER HPGR PRODUCTION CONVEYOR, C2-3230-CV-018 3489 3200-25J-075 FRESH WATER HPGR PRODUCTION CONVEYOR, C2-3230-CV-028 3490 3200-25J-076 CLOSED LOOP CWR HEADER 4005 3200-25J-084 TW TW CV TW H CONV CONV TW NOTES: 1. ALL INSTRUMENTS BY VENDOR. TW CV CONV TW SEL TW CV 6"x4" 1" 5100-WF- -C1A-10"-N 3200-WF- -C1A-6"-N 1" 1" 8"x10" 6"x4" 1" 1" V 3230-WF-1461-C1A-2"-N 3230-WF- -C1A-2"-N 3"x2" 3230-WF-1457-C1A-10"-N 1" 1" 1" 1" 1" 1" 1" 3230-WF-1453-C1A-4"-N 3230-WF-1452-C1A-8"-N 1" 1" 3230-WF-1454-C1A-4"-N 3230-WF-1451-C1A-4"-N 3230-WF-1450-C1A-8"-N 3230-WF-1456-C1A-6"-N AG KM LT ISSUED FOR CLIENT REVIEW 23-Dec-11 B NOT USED A 12/23/2011 K.MUNDY A.GUNSON T. OH L.TAMELIN 1/3/2012 12:55:29 PM WBS: 3200 B PIPING AND INSTRUMENTATION DIAGRAM SECONDARY/TERTIARY CRUSHING AND CONVEYING 3200-25J-082 CLOSED COOLING SYSTEM SH. 1 OF 2 C2-3230-HX-774 SIZE: MOTOR: C2-3230-HX-774 CRUSHING AREA HEAT EXCHANGER NO.2 3200 08224 PSV + 3230-WF- -C1A-1"-N C2-3230-HX-775 VENT 3200 08225 XV + DRAIN 3230-WF-1458-C1A-4"-N DRAIN 3200 08207 C TV + VENT DRAIN 3200 08214 PSV + PSET= 3230-WF- -C1A-1"-N VENT 3200 08211 FE + 3230-WF-1456-C1A-4"-N 3230-WF-1457-C1A-8"-N DRAIN DRAIN FI 3200 08215 XV + 3200 08207 B TV + FO FI VENT FO 3200-WF- -C1A-1"-N VENT 3200 08205 XV + DRAIN 3230-WF-1454-C1A-4"-N DRAIN 3200 08201 FE + PSET= DRAIN 3200 08204 PSV + C2-3230-HX-773 3200 08207 A TV + 3230-WF-1455-C1A-8"-N SIZE: MOTOR: C2-3230-HX-773 CRUSHING AREA HEAT EXCHANGER NO.1 FI VENT FO 1" 10"x8" 3200 08221 FE + PSET= 3230-WF-1459-C1A-8"-N DRAIN SIZE: MOTOR: C2-3230-HX-775 CRUSHING AREA HEAT EXCHANGER NO.3 D 4 F B A 3 2 1 5 6 8 E 7 C REV. APPROVED CHK. DES. REV. DATE REVISION DESCRIPTION CLIENT LEAD ENGINEER SCALE DRAWING NUMBER CHECK DESIGN CHECK DRAWING DESIGNED BY DRAWN BY APPROVAL DATE APPROVAL DATE APPROVED CHK. DES. REV. DATE REVISION DESCRIPTION REFERENCE DRAWING No. 1:100 0 1:200 5m 10m 0 5m 10m 15m 20m 1:500 10m 0 20m 30m 40m 50m 1:1000 0 100m 50m 1:20 0 0.5m 1m 1.5m 2m 0 1:25 0.5m 1m 1.5m 1:33 1/3 2.5m 2m 0 1m 2m 3m 0 1:50 1m 2m 3m 4m 5m CAD FILE NAME: P:0CAD000SPEM** MODEL UPDATED: DWG. FILE UPDATED: MANUAL CHANGES MADE: YES NO YES NO YES NO PROJECT MANAGER ENGINEERING MANAGER AREA PROJECTENGINEER REFERENCE DRAWINGS SAFETY SHARE: APPROVAL DATE CONTRACT NO. SAFETY SHARE : BA6CVA1.IGR NOTICE: THIS DRAWING HAS NOT BEEN PUBLISHED AND IS THE SOLE PROPERTY OF FLUOR AND IS LENT TO THE BORROWER FOR THEIR CONFIDENTIAL USE ONLY, AND IN CONSIDERATION OF THE LOAN OF THIS DRAWING, THE BORROWER PROMISES AND AGREES TO RETURN IT UPON REQUEST AND AGREES THAT IT WILL NOT BE REPRODUCED, COPIED LENT OR OTHERWISE DISPOSED OF DIRECTLY OR INDIRECTLY, NOR USED FOR ANY OTHER PURPOSE OTHER THAN WHICH IT IS FURNISHED. NONE Apr 2011 240K-C2- (NOTE 1) FRESH WATER COOLING WATER RETURN PUMPBOX, C2-3230-BX-030 4003 3200-25J-079
  • 87.
    D 4 F B A 3 2 1 5 68 E 7 C REV. APPROVED CHK. DES. REV. DATE REVISION DESCRIPTION CLIENT LEAD ENGINEER SCALE DRAWING NUMBER CHECK DESIGN CHECK DRAWING DESIGNED BY DRAWN BY APPROVAL DATE APPROVAL DATE APPROVED CHK. DES. REV. DATE REVISION DESCRIPTION REFERENCE DRAWING No. 1:100 0 1:200 5m 10m 0 5m 10m 15m 20m 1:500 10m 0 20m 30m 40m 50m 1:1000 0 100m 50m 1:20 0 0.5m 1m 1.5m 2m 0 1:25 0.5m 1m 1.5m 1:33 1/3 2.5m 2m 0 1m 2m 3m 0 1:50 1m 2m 3m 4m 5m CAD FILE NAME: P:0CAD000SPEM** MODEL UPDATED: DWG. FILE UPDATED: MANUAL CHANGES MADE: YES NO YES NO YES NO PROJECT MANAGER ENGINEERING MANAGER AREA PROJECTENGINEER REFERENCE DRAWINGS SAFETY SHARE: APPROVAL DATE CONTRACT NO. SAFETY SHARE : BA6CVA1.IGR NOTICE: THIS DRAWING HAS NOT BEEN PUBLISHED AND IS THE SOLE PROPERTY OF FLUOR AND IS LENT TO THE BORROWER FOR THEIR CONFIDENTIAL USE ONLY, AND IN CONSIDERATION OF THE LOAN OF THIS DRAWING, THE BORROWER PROMISES AND AGREES TO RETURN IT UPON REQUEST AND AGREES THAT IT WILL NOT BE REPRODUCED, COPIED LENT OR OTHERWISE DISPOSED OF DIRECTLY OR INDIRECTLY, NOR USED FOR ANY OTHER PURPOSE OTHER THAN WHICH IT IS FURNISHED. NONE Apr 2011 240K-C2- COOLING WATER SYSTEM PLANT AIR COMPRESSOR, C2-3220-CO-021/022 2978 3200-25J-017 COOLING WATER SYSTEM FIXED ROLL CONTROLS, C2-3230-CR-015 3082 3200-25J-065 COOLING WATER SYSTEM FIXED ROLL CONTROLS, C2-3230-CR-016 3107 3200-25J-066 COOLING WATER SYSTEM FIXED ROLL CONTROLS, C2-3230-CR-017 3110 3200-25J-067 COOLING WATER SYSTEM FIXED ROLL CONTROLS, C2-3230-CR-018 3113 3200-25J-068 COOLING WATER SYSTEM FIXED ROLL CONTROLS, C2-3230-CR-025 3117 3200-25J-069 COOLING WATER SYSTEM FIXED ROLL CONTROLS, C2-3230-CR-026 3120 3200-25J-070 COOLING WATER SYSTEM FIXED ROLL CONTROLS, C2-3230-CR-027 3123 3200-25J-071 COOLING WATER SYSTEM AFD FIXED ROLL, C2-3230-CR-028 3126 3200-25J-072 CLOSED LOOP CWS C2-3230-PP-767/768 4004 3200-25J-081 COOLING WATER SYSTEM ROLL CONTROLS, C2-3230-CR-015 4007 3200-25J-065 COOLING WATER SYSTEM ROLL CONTROLS, C2-3230-CR-015 4008 3200-25J-065 COOLING WATER SYSTEM MOVEABLE ROLL CONTROLS, C2-3230-CR-015 4009 3200-25J-065 COOLING WATER SYSTEM AFD MOVEABLE ROLL, C2-3230-CR-015 4010 3200-25J-065 COOLING WATER SYSTEM AFD FIXED ROLL, C2-3230-CR-015 4011 3200-25J-065 COOLING WATER SYSTEM AFD FIXED ROLL, C2-3230-CR-016 4017 3200-25J-066 COOLING WATER SYSTEM AFD MOVEABLE ROLL, C2-3230-CR-016 4018 3200-25J-066 COOLING WATER SYSTEM MOVEABLE ROLL CONTROLS, C2-3230-CR-016 4019 3200-25J-066 COOLING WATER SYSTEM ROLL CONTROLS, 3230-CR-016 4020 3200-25J-066 COOLING WATER SYSTEM ROLL CONTROLS, 3230-CR-016 4022 3200-25J-066 COOLING WATER SYSTEM AFD FIXED ROLL, C2-3230-CR-017 4029 3200-25J-067 COOLING WATER SYSTEM ROLL CONTROLS, C2-3230-CR-017 4031 3200-25J-067 COOLING WATER SYSTEM ROLL CONTROLS, C2-3230-CR-017 4032 3200-25J-067 COOLING WATER SYSTEM MOVEABLE ROLL CONTROLS, C2-3230-CR-017 4033 3200-25J-067 COOLING WATER SYSTEM AFD MOVEABLE ROLL, C2-3230-CR-017 4036 3200-25J-067 COOLING WATER SYSTEM ROLL CONTROLS, C2-3230-CR-018 4041 3200-25J-068 COOLING WATER SYSTEM AFD MOVEABLE ROLL, C2-3230-CR-018 4042 3200-25J-068 COOLING WATER SYSTEM MOVEABLE ROLL CONTROLS, C2-3230-CR-018 4043 3200-25J-068 COOLING WATER SYSTEM ROLL CONTROLS, C2-3230-CR-018 4046 3200-25J-068 COOLING WATER SYSTEM AFD FIXED ROLL, C2-3230-CR-018 4047 3200-25J-068 COOLING WATER SYSTEM ROLL CONTROLS, C2-3230-CR-025 4049 3200-25J-069 COOLING WATER SYSTEM AFD MOVEABLE ROLL, C2-3230-CR-025 4050 3200-25J-069 COOLING WATER SYSTEM MOVEABLE ROLL CONTROLS, C2-3230-CR-025 4051 3200-25J-069 COOLING WATER SYSTEM ROLL CONTROLS, C2-3230-CR-025 4055 3200-25J-069 COOLING WATER SYSTEM AFD FIXED ROLL, C2-3230-CR-025 4056 3200-25J-069 COOLING WATER SYSTEM ROLL CONTROLS, C2-3230-CR-026 4061 3200-25J-070 COOLING WATER SYSTEM ROLL CONTROLS, C2-3230-CR-026 4062 3200-25J-070 COOLING WATER SYSTEM AFD MOVEABLE ROLL, C2-3230-CR-026 4063 3200-25J-070 COOLING WATER SYSTEM MOVEABLE ROLL CONTROLS, C2-3230-CR-026 4066 3200-25J-070 COOLING WATER SYSTEM AFD FIXED ROLL, C2-3230-CR-026 4068 3200-25J-070 COOLING WATER SYSTEM ROLL CONTROLS, C2-3230-CR-027 4069 3200-25J-071 COOLING WATER SYSTEM MOVEABLE ROLL CONTROLS, C2-3230-CR-027 4070 3200-25J-071 COOLING WATER SYSTEM ROLL CONTROLS, C2-3230-CR-027 4073 3200-25J-071 COOLING WATER SYSTEM AFD FIXED ROLL, C2-3230-CR-027 4075 3200-25J-071 COOLING WATER SYSTEM AFD MOVEABLE ROLL, C2-3230-CR-027 4076 3200-25J-071 COOLING WATER SYSTEM ROLL CONTROLS, C2-3230-CR-028 4079 3200-25J-072 COOLING WATER SYSTEM ROLL CONTROLS, C2-3230-CR-028 4080 3200-25J-072 COOLING WATER SYSTEM FIXED ROLL CONTROLS, C2-3230-CR-028 4081 3200-25J-072 COOLING WATER SYSTEM MOVEABLE ROLL CONTROLS, C2-3230-CR-028 4086 3200-25J-072 COOLING WATER SYSTEM AFD MOVEABLE ROLL, C2-3230-CR-028 4087 3200-25J-072 3230-WF-1227-C1A-6"-N AG KM LT ISSUED FOR CLIENT REVIEW 25-Jan-12 B NOT USED A 1/25/2012 K.MUNDY A.GUNSON T. OH L.TAMELIN 1/25/2012 1:33:51 PM WBS: 3200 B PIPING AND INSTRUMENTATION DIAGRAM SECONDARY/TERTIARY CRUSHING AND CONVEYING 3200-25J-083 CLOSED LOOP COOLING WATER SYSTEM DIS. 3230-WF-1244-C1A-2"-N 3230-WF-1245-C1A-2"-N 3230-WF-1249-C1A-2"-N 3230-WF-1247-C1A-2"-N 3230-WF-1248-C1A-1-1/2"-N 3230-WF-1246-C1A-1-1/2"-N 3230-WF-1181-C1A-4"-N 3230-WF-1256-C1A-2"-N 3230-WF-1257-C1A-2"-N 3230-WF-1261-C1A-2"-N 3230-WF-1259-C1A-2"-N 3230-WF-1260-C1A-1-1/2"-N 3230-WF-1258-C1A-1-1/2"-N 3230-WF-1268-C1A-2"-N 3230-WF-1269-C1A-2"-N 3230-WF-1273-C1A-2"-N 3230-WF-1271-C1A-2"-N 3230-WF-1272-C1A-1-1/2"-N 3230-WF-1270-C1A-1-1/2"-N 3230-WF-1282-C1A-1-1/2"-N 3230-WF-1284-C1A-1-1/2"-N 3230-WF-1283-C1A-2"-N 3230-WF-1285-C1A-2"-N 3230-WF-1281-C1A-2"-N 3230-WF-1280-C1A-2"-N 3230-WF-1294-C1A-1-1/2"-N 3230-WF-1296-C1A-1-1/2"-N 3230-WF-1295-C1A-2"-N 3230-WF-1297-C1A-2"-N 3230-WF-1293-C1A-2"-N 3230-WF-1292-C1A-2"-N 3230-WF-1304-C1A-2"-N 3230-WF-1305-C1A-2"-N 3230-WF-1309-C1A-2"-N 3230-WF-1307-C1A-2"-N 3230-WF-1308-C1A-1-1/2"-N 3230-WF-1306-C1A-1-1/2"-N 3230-WF-1316-C1A-2"-N 3230-WF-1317-C1A-2"-N 3230-WF-1321-C1A-2"-N 3230-WF-1319-C1A-2"-N 3230-WF-1320-C1A-1-1/2"-N 3230-WF-1318-C1A-1-1/2"-N 3230-WF-1328-C1A-2"-N 3230-WF-1329-C1A-2"-N 3230-WF-1333-C1A-2"-N 3230-WF-1331-C1A-2"-N 3230-WF-1332-C1A-1-1/2"-N 3230-WF-1330-C1A-1-1/2"-N
  • 88.
    D 4 F B A 3 2 1 5 68 E 7 C REV. APPROVED CHK. DES. REV. DATE REVISION DESCRIPTION CLIENT LEAD ENGINEER SCALE DRAWING NUMBER CHECK DESIGN CHECK DRAWING DESIGNED BY DRAWN BY APPROVAL DATE APPROVAL DATE APPROVED CHK. DES. REV. DATE REVISION DESCRIPTION REFERENCE DRAWING No. 1:100 0 1:200 5m 10m 0 5m 10m 15m 20m 1:500 10m 0 20m 30m 40m 50m 1:1000 0 100m 50m 1:20 0 0.5m 1m 1.5m 2m 0 1:25 0.5m 1m 1.5m 1:33 1/3 2.5m 2m 0 1m 2m 3m 0 1:50 1m 2m 3m 4m 5m CAD FILE NAME: P:0CAD000SPEM** MODEL UPDATED: DWG. FILE UPDATED: MANUAL CHANGES MADE: YES NO YES NO YES NO PROJECT MANAGER ENGINEERING MANAGER AREA PROJECTENGINEER REFERENCE DRAWINGS SAFETY SHARE: APPROVAL DATE CONTRACT NO. SAFETY SHARE : BA6CVA1.IGR NOTICE: THIS DRAWING HAS NOT BEEN PUBLISHED AND IS THE SOLE PROPERTY OF FLUOR AND IS LENT TO THE BORROWER FOR THEIR CONFIDENTIAL USE ONLY, AND IN CONSIDERATION OF THE LOAN OF THIS DRAWING, THE BORROWER PROMISES AND AGREES TO RETURN IT UPON REQUEST AND AGREES THAT IT WILL NOT BE REPRODUCED, COPIED LENT OR OTHERWISE DISPOSED OF DIRECTLY OR INDIRECTLY, NOR USED FOR ANY OTHER PURPOSE OTHER THAN WHICH IT IS FURNISHED. NONE Apr 2011 240K-C2- AG KM LT ISSUED FOR CLIENT REVIEW 25-Jan-12 B NOT USED A 1/25/2012 K. MUNDY A. GUNSON T. OH L. TAMELIN 1/25/2012 9:19:34 AM WBS: 3200 B PIPING AND INSTRUMENTATION DIAGRAM SECONDARY/TERTIARY CRUSHING AND CONVEYING 3200-25J-084 CLOSED LOOP COOLING WATER SYSTEM COOLING WATER RETURN HPGR NO. 1 LUBE SYSTEM CR-015 FIXED ROLL 3078 3200-25J-065 COOLING WATER RETURN HPGR NO. 2 LUBE SYSTEM CR-016 FIXED ROLL 3108 3200-25J-066 COOLING WATER RETURN HPGR NO. 3 LUBE SYSTEM CR-017 FIXED ROLL 3111 3200-25J-067 COOLING WATER RETURN HPGR NO. 4 LUBE SYSTEM CR-018 FIXED ROLL 3114 3200-25J-068 COOLING WATER RETURN HPGR NO. 5 LUBE SYSTEM CR-025 FIXED ROLL 3118 3200-25J-069 COOLING WATER RETURN HPGR NO. 6 LUBE SYSTEM CR-026 FIXED ROLL 3121 3200-25J-070 COOLING WATER RETURN HPGR NO. 7 LUBE SYSTEM CR-027 FIXED ROLL 3124 3200-25J-071 COOLING WATER RETURN HPGR NO. 8 LUBE SYSTEM CR-028 FIXED ROLL 3127 3200-25J-072 PLANT AIR PLANT AIR COMPRESSOR, C2-3220-CO-021/022 3425 3200-25J-017 COOLING WATER RETURN CRUSHING AREA HEAT EXCHANGERS, 4005 3200-25J-082 COOLING WATER RETURN HPGR NO. 1 LUBE SYSTEM CR-015 ROLL CONTROLS 4012 3200-25J-065 COOLING WATER RETURN HPGR NO. 1 LUBE SYSTEM CR-015 MOVABLE ROLL 4013 3200-25J-065 COOLING WATER RETURN HPGR NO. 1 LUBE SYSTEM CR-015 AFD MOVABLE ROLL 4014 3200-25J-065 COOLING WATER RETURN HPGR NO. 1 LUBE SYSTEM CR-015 AFD FIXED ROLL 4015 3200-25J-065 COOLING WATER RETURN HPGR NO. 1 LUBE SYSTEM CR-015 ROLL CONTROLS 4016 3200-25J-065 COOLING WATER RETURN HPGR NO. 2 LUBE SYSTEM CR-016 ROLL CONTROLS 4023 3200-25J-066 COOLING WATER RETURN HPGR NO. 2 LUBE SYSTEM CR-016 AFD FIXED ROLL 4024 3200-25J-066 COOLING WATER RETURN HPGR NO. 2 LUBE SYSTEM CR-016 AFD MOVABLE ROLL 4025 3200-25J-066 COOLING WATER RETURN HPGR NO. 2 LUBE SYSTEM CR-016 MOVABLE ROLL 4026 3200-25J-066 COOLING WATER RETURN HPGR NO. 2 LUBE SYSTEM CR-016 ROLL CONTROLS 4028 3200-25J-066 COOLING WATER RETURN HPGR NO. 3 LUBE SYSTEM CR-017 AFD FIXED ROLL 4030 3200-25J-067 COOLING WATER RETURN HPGR NO. 3 LUBE SYSTEM CR-017 AFD MOVABLE ROLL 4034 3200-25J-067 COOLING WATER RETURN HPGR NO. 3 LUBE SYSTEM CR-017 ROLL CONTROLS 4035 3200-25J-067 COOLING WATER RETURN HPGR NO. 3 LUBE SYSTEM CR-017 ROLL CONTROLS 4037 3200-25J-067 COOLING WATER RETURN HPGR NO. 3 LUBE SYSTEM CR-017 MOVABLE ROLL 4038 3200-25J-067 COOLING WATER RETURN HPGR NO. 4 LUBE SYSTEM CR-018 MOVABLE ROLL 4039 3200-25J-068 COOLING WATER RETURN HPGR NO. 4 LUBE SYSTEM CR-018 ROLL CONTROLS 4040 3200-25J-068 COOLING WATER RETURN HPGR NO. 4 LUBE SYSTEM CR-018 AFD FIXED ROLL 4044 3200-25J-068 COOLING WATER RETURN HPGR NO. 4 LUBE SYSTEM CR-018 AFD MOVABLE ROLL 4045 3200-25J-068 COOLING WATER RETURN HPGR NO. 4 LUBE SYSTEM CR-018 ROLL CONTROLS 4048 3200-25J-068 COOLING WATER RETURN HPGR NO. 5 LUBE SYSTEM CR-025 ROLL CONTROLS 4052 3200-25J-069 COOLING WATER RETURN HPGR NO. 5 LUBE SYSTEM CR-025 AFD MOVABLE ROLL 4053 3200-25J-069 COOLING WATER RETURN HPGR NO. 5 LUBE SYSTEM CR-025 ROLL CONTROLS 4054 3200-25J-069 COOLING WATER RETURN HPGR NO. 5 LUBE SYSTEM CR-025 AFD FIXED ROLL 4057 3200-25J-069 COOLING WATER RETURN HPGR NO. 5 LUBE SYSTEM CR-025 MOVABLE ROLL 4058 3200-25J-069 COOLING WATER RETURN HPGR NO. 6 LUBE SYSTEM CR-026 ROLL CONTROLS 4059 3200-25J-070 COOLING WATER RETURN HPGR NO. 6 LUBE SYSTEM CR-026 MOVABLE ROLL 4060 3200-25J-070 COOLING WATER RETURN HPGR NO. 6 LUBE SYSTEM CR-026 AFD FIXED ROLL 4064 3200-25J-070 COOLING WATER RETURN HPGR NO. 6 LUBE SYSTEM CR-026 ROLL CONTROLS 4065 3200-25J-070 COOLING WATER RETURN HPGR NO. 6 LUBE SYSTEM CR-026 AFD MOVABLE ROLL 4067 3200-25J-070 COOLING WATER RETURN HPGR NO. 7 LUBE SYSTEM CR-027 AFD FIXED ROLL 4071 3200-25J-071 COOLING WATER RETURN HPGR NO. 7 LUBE SYSTEM CR-027 MOVABLE ROLL 4072 3200-25J-071 COOLING WATER RETURN HPGR NO. 7 LUBE SYSTEM CR-027 ROLL CONTROLS 4074 3200-25J-071 COOLING WATER RETURN HPGR NO. 7 LUBE SYSTEM CR-027 ROLL CONTROLS 4077 3200-25J-071 COOLING WATER RETURN HPGR NO. 7 LUBE SYSTEM CR-027 AFD MOVABLE ROLL 4078 3200-25J-071 COOLING WATER RETURN HPGR NO. 8 LUBE SYSTEM CR-028 ROLL CONTROLS 4082 3200-25J-072 COOLING WATER RETURN HPGR NO. 8 LUBE SYSTEM CR-028 AFD FIXED ROLL 4083 3200-25J-072 COOLING WATER RETURN HPGR NO. 8 LUBE SYSTEM CR-028 AFD MOVABLE ROLL 4084 3200-25J-072 COOLING WATER RETURN HPGR NO. 8 LUBE SYSTEM CR-028 MOVABLE ROLL 4085 3200-25J-072 COOLING WATER RETURN HPGR NO. 8 LUBE SYSTEM CR-028 ROLL CONTROLS 4088 3200-25J-072 3230-WF-1303-C1A-1-1/2"-N 3230-WF-1302-C1A-2"-N 3230-WF-1290-C1A-2"-N 3230-WF-1291-C1A-1-1/2"-N 3230-WF-1288-C1A-1-1/2"-N 3230-WF-1289-C1A-2"-N 3230-WF-1287-C1A-2"-N 3230-WF-1275-C1A-2"-N 3230-WF-1278-C1A-2"-N 3230-WF-1277-C1A-2"-N 3230-WF-1279-C1A-1-1/2"-N 3230-WF-1276-C1A-1-1/2"-N 3230-WF-1266-C1A-2"-N 3230-WF-1263-C1A-2"-N 3230-WF-1267-C1A-1-1/2"-N 3230-WF-1337-C1A-2"-N 3230-WF-1335-C1A-2"-N 3230-WF-1264-C1A-1-1/2"-N 3230-WF-1265-C1A-2"-N 3230-WF-1254-C1A-2"-N 3230-WF-1252-C1A-1-1/2"-N 3230-WF-1255-C1A-1-1/2"-N 3230-WF-1251-C1A-2"-N 3230-WF-1253-C1A-2"-N 3230-WF-1649-C1A-6"-N 3230-WF-1324-C1A-1-1/2"-N 3230-WF-1323-C1A-2"-N 3230-WF-1325-C1A-2"-N 3230-WF-1326-C1A-2"-N 3230-WF-1327-C1A-1-1/2"-N 3230-WF-1338-C1A-2"-N 3230-WF-1336-C1A-1-1/2"-N 3230-WF-1339-C1A-1-1/2"-N 3230-WF-1334-C1A-2"-N 3230-WF-1322-C1A-2"-N 3230-WF-1310-C1A-2"-N 3230-WF-1298-C1A-2"-N 3230-WF-1286-C1A-2"-N 3230-WF-1274-C1A-2"-N 3230-WF-1262-C1A-2"-N 3230-WF-1250-C1A-2"-N 3230-WF-1301-C1A-2"-N 3230-WF-1300-C1A-1-1/2"-N 3230-WF-1299-C1A-2"-N 3230-WF-1314-C1A-2"-N 3230-WF-1311-C1A-2"-N 3230-WF-1312-C1A-1-1/2"-N 3230-WF-1313-C1A-2"-N 3230-WF-1315-C1A-1-1/2"-N 3220-WF-1232-C1A-4"-N C2-3230-HX-773/774/775
  • 89.
    V M LHS 3310 00192 XA 3310 00105 ZSH 3310 00105 ZSH 3310 00123 A SI 3310 00104 ZSH 3310 00104 ZSH 3310 00137 LAL 3310 00137 LSL 3310 00181 HS 3310 00115 A LAH 3310 00115A LSH 3310 00116 A LI 3310 00116 LIT 3310 00116 LI 3310 00116 LE 3310 00117 LAL 3310 00117 LSL 3310 00136 A LI 3310 00126 A TI HH, P1 H, P2 3310 00192 HS J/SP 3310 00136 LIT 3310 00181 XA 3310 00126 A TE 3310 00130 WIT 3310 00124 ZAH 3310 00130 WE 3310 00123 A ST 3310 00123 A SE 3310 00127 B TE 3310 00136 LE 3310 00103 A SI 3310 00107 B TE 3310 00103 B SE 3310 00182 II 3310 00106 B TI HH, P1 H, P2 3310 00108 XA P1 3310 00106 B TE 3310 00106 A TI HH, P1 H, P2 3310 00102 HSA 3310 00126 B TI 3310 00106 A TE 3310 00108 B XS 3310 00104 ZSHH LHS 3310 00108 A XS 3310 00105 ZSHH C,D RHS 3310 00105 ZSHH 3310 00103 A ST 3310 00101 HSS 3310 00103 B ST 3310 00103 SDI 3310 00126 B TE 3310 00135 A LAH 3310 00125 ZAH P1 3310 00122 HSA LHS 3310 00181 II 3310 00136 LI HH, P1 H, P2 L, P2 3310 00102 HSS RHS 3310 00103 B SI 3310 00107 B TI HH, P1 H, P2 3310 00104 ZAHH 3310 00103 A SE 3310 00105 ZAHH 3310 00182 H TI BRG REAR H,P2 HH,P1 3310 00107 A TI HH, P1 H, P2 3310 00182 G TI BRG FRONT H,P2 HH,P1 3310 00107 A TE 3310 00182 G TE 3310 00121 HSA 3310 00135 A LSH 3310 00121 HSS 3310 00125 ZSHH A,B 3310 00122 HSS RHS 3310 00125 ZSH 3310 00124 ZSHH 3310 00192 II 3310 00124 ZSH LHS A,B 3310 00104 ZSHH LHS 3310 00182 XA 3310 00101 HSA 3310 00182 H TE 3310 00127 A TI HH, P1 H, P2 3310 00127 A TE 3310 00127 B TI 3310 00130 WI TERTIARY CRUSHER BALL MILL SCREEN FEEDER C2-3310-FE-102 1289 3300-25J-002 PLANT AIR 1372 3900-25J-022 TERTIARY CRUSHER HPGR PRODUCT CONVEYOR NO. 1, C2-3230-CV-018 1291 3200-25J-075 WATER RATIO CONTROLLER, 3310-FFFIC-00301 1293 3300-25J-003 TERTIARY CRUSHER BALL MILL SCREEN FEED BOX C2-3310-BX-107 1294 3300-25J-003 P1 A,B P1 A-B RHS TEAR A,B C,D RHS A,B P1 LHS A,B P1 RHS RHS H, P1 LHS P1 A-B LHS A,B P1 P1 A,B LHS A,B H, P1 RHS HH, P1 H, P2 HH, P1 H, P2 RHS P2 A,B A,B RHS A,B FAULT FAULT P1 J/SP HH, P1 H, P2 L, P2 P1 A,B C2-3310-DC-173 C2-3310-ST-102 C2-3310-ST-101 C2-3310-ST-103 C2-3310-FA-173 C2-3310-ST-331 C2-3310-SL-111 C2-3310-FE-101 C2-3310-CV-060 3310 00131 XA + 3310-AP-1074-C1A-2"-N C2-3310-BN-101 SIZE: C2-3310-DC-173 BALL MILL FEED BIN DUST COLLECTOR (DRY) SIZE: C2-3310-BN-101 BALL MILL FEED SURGE BIN SIZE: C2-3310-ST-101 BALL MILL SCREEN FEEDER SKIRT SIZE: C2-3310-ST-102 BALL MILL SCREEN FEEDER SKIRT SIZE: C2-3310-ST-103 BALL MILL SCREEN FEED CHUTE SIZE: C2-3310-SL-111 BALL MILL SCREEN FEEDER BELT SCALE SIZE: C2-3310-ST-331 BALL MILL SCREEN FEED CONVEYOR HEAD CHUTE TO ATMOSPHERE D 4 F B A 3 2 1 5 6 8 E 7 C REV. APPROVED CHK. DES. REV. DATE REVISION DESCRIPTION CLIENT LEAD ENGINEER SCALE DRAWING NUMBER CHECK DESIGN CHECK DRAWING DESIGNED BY DRAWN BY APPROVAL DATE APPROVAL DATE APPROVED CHK. DES. REV. DATE REVISION DESCRIPTION REFERENCE DRAWING No. 1:100 0 1:200 5m 10m 0 5m 10m 15m 20m 1:500 10m 0 20m 30m 40m 50m 1:1000 0 100m 50m 1:20 0 0.5m 1m 1.5m 2m 0 1:25 0.5m 1m 1.5m 1:33 1/3 2.5m 2m 0 1m 2m 3m 0 1:50 1m 2m 3m 4m 5m CAD FILE NAME: P:0CAD000SPEM** MODEL UPDATED: DWG. FILE UPDATED: MANUAL CHANGES MADE: YES NO YES NO YES NO PROJECT MANAGER ENGINEERING MANAGER AREA PROJECTENGINEER REFERENCE DRAWINGS SAFETY SHARE: APPROVAL DATE CONTRACT NO. SAFETY SHARE : BA6CVA1.IGR NOTICE: THIS DRAWING HAS NOT BEEN PUBLISHED AND IS THE SOLE PROPERTY OF FLUOR AND IS LENT TO THE BORROWER FOR THEIR CONFIDENTIAL USE ONLY, AND IN CONSIDERATION OF THE LOAN OF THIS DRAWING, THE BORROWER PROMISES AND AGREES TO RETURN IT UPON REQUEST AND AGREES THAT IT WILL NOT BE REPRODUCED, COPIED LENT OR OTHERWISE DISPOSED OF DIRECTLY OR INDIRECTLY, NOR USED FOR ANY OTHER PURPOSE OTHER THAN WHICH IT IS FURNISHED. NONE Apr 2011 240K-C2- 3310 00123 B SE 3310 00123 B ST 3310 00123 B SI 3310 00123 SDI H, P1 3310 00135 A LE 3310 00135 B LE 3310 00135 B LSH 3310 00135 B LAH H, P1 3310 00115 A LE 3310 00115 B LE 3310 00115 B LSH 3310 00115 B LAH P1 BIN CONTINUED ON PID 3310-25J-004 T5 V V ES V ES V ES ES ES V V V V ES V V V ES V ES ES ES ES AG KM LT ISSUED FOR CLIENT REVIEW 23-Dec-11 B RP ISSUED FOR COMBINED REVIEW 29-Jun-11 A 12/23/2011 K. MUNDY A. GUNSON W. BIE L. TAMELIN 12/23/2011 9:37:10 AM WBS: 3310 B PIPING AND INSTRUMENTATION DIAGRAM BALL MILL FEED 3300-25J-001 SCREEN FEEDER 101 V LHS P2 A,B V RHS LHS LHS A,B LHS RHS LHS RHS 3310 00130 SE TERTIARY CRUSHER BALL MILL FEED SURGE BIN, C2-3310-BN-201 1483 3300-25J-004 C2-3310-ST-351 C2-3310-ST-175 C2-3310-ST-176 C2-3310-ZM-069 SIZE: MOTOR: C2-3310-ZM-069 SPILE BAR INSERTION UNIT - BALL MILL BIN SIZE: C2-3310-ST-175 BALL MILL FEED BIN INSERT SIZE: C2-3310-ST-176 BALL MILL FEED BIN INSERT SIZE: 2134 mm X 42 m L MOTOR: 112.00 kW C2-3310-CV-060 BALL MIL SCREEN FEED CONVEYOR NO. 1 SIZE: MOTOR: C2-3310-FE-101 BALL MILL SCREEN FEEDER SIZE: MOTOR: C2-3310-FA-173 BALL MILL FEED BIN DUST COLLECTOR FAN SIZE: C2-3310-ST-351 BALL MILL SCREEN FEED CONVEYOR SKIRT PRODUCT PRODUCT M 3310 00183 HS 3310 00183 XA 3310 00183 II FAULT J/SP C2-3310-DC-172 C2-3310-FA-172 TO ATMOSPHERE PRODUCT SIZE: C2-3310-DC-172 BALL MILL FEED BIN DUST COLLECTOR (DRY) SIZE: MOTOR: C2-3310-FA-172 BALL MILL FEED BIN DUST COLLECTOR FAN V V V V V V A,B A,B 3310 00105 ZAH 3310 01104 ZAH P2 P2 3310 00104 ZAHH 3310 00105 ZAHH RHS C, D P1 LHS C, D P1 3310 00105 ZAH 3310 01104 ZAH P2 P2 V C,D V C,D V V V V V V A,B A,B 3310 00125 ZAHH 3310 00124 ZAHH P1 PRODUCT 3310-AP-1075-C1A-2"-N VENDOR VENDOR 3310 00182 HS 3310 00111 XA + J/SP FAULT AFD GEAR REDUCER T4 3310 00141 VE 3310 00141 VT 3310 00143 TE 3310 00142 LE 3310 00142 LSL 3310 00142 LA 3310 00141 VI ES V V V V V V H, P2 HH, P1 3310 00143 TI L, P2 H, P2 HH, P1 ES 3310 00119 PDAH 3310 00139 PDAH NOTE: 1. THE BALL MILL SCREEN FEEDER AND BALL MILL SCREEN FEED CONVEYOR DUST SUPPRESSION SYSTEM WILL BE FURTHER DEFINED IN REVISIONS. SPRAY WATER WILL BE SUPPLIED BY THE PROCESS WATER SYSTEM.
  • 90.
    RHS LHS T5 LHS 3310 00204 ZSHH 3310 00205 ZSHH 3310 00230 WIT RHS 3310 00215 B LSH 3310 00201 HSS 3310 00206 A TIHH, P1 H, P2 3310 00235 B LE 3310 00215 B LAH P1 3310 00224 ZSH A,B 3310 00225 ZSH RHS 3310 00208 XA 3310 00204 ZSH LHS A,B 3310 00203 A ST 3310 00208 A XS TEAR 3310 00235 B LSH 3310 00223 B ST 3310 00227 A TI HH, P1 H, P2 3310 00223 B SE 3310 00221 HSS 3310 00215 A LE 3310 00203 A SI 3310 00206 B TI HH, P1 H, P2 3310 00203 A SE 3310 00204 ZAHH LHS A,B 3310 00203 B ST 3310 00230 WE 3310 00230 WI 3310 00207 A TI 3310 00208 B XS LHS 3310 00235 A LAH P1 3310 00226 A TI HH, P1 H, P2 3310 00204 ZSHH 3310 00201 HSA 3310 00215 A LSH 3310 00207 B TI 3310 00222 HSA A,B RHS 3310 00224 ZSHH 3310 00225 ZSHH A,B 3310 00226 B TE 3310 00221 HSA LHS 3310 00226 B TI HH, P1 H, P2 3310 00222 HSS RHS 3310 00206 B TE 3310 00230 SE 3310 00207 A TE 3310 00227 A TE 3310 00203 B SI 3310 00205 ZAHH 3310 00202 HSS RHS 3310 00215 B LE 3310 00206 A TE RHS 3310 00227 B TI 3310 00202 HSA 3310 00223 SDI H, P1 3310 00204 ZSH LHS 3310 00223 B SI 3310 00223 A SE 3310 00215 A LAH P1 3310 00205 ZSH 3310 00223 A SI 3310 00226 A TE 3310 00207 B TE 3310 00223 A ST 3310 00203 B SE 3310 00205 ZSHH 3310 00203 SDI 3310 00235 B LAH P1 3310 00235 A LSH 3310 00205 ZSH C,D 3310 00227 B TE 3310 00235 A LE TERTIARY CRUSHER BALL MILL SCREEN FEED BOX, C2-3310-BX-108 1298 3300-25J-003 TERTIARY CRUSHER BALL MILL FEED SURGE BIN, C2-3310-BN-101 1289 3300-25J-001 WATER RATIO CONTROLLER, 3310-FFFIC-00321 1299 3300-25J-003 HH, P1 H, P2 A-B RHS A,B RHS HH, P1 H, P2 P1 A,B P1 HH, P1 H, P2 RHS P1 A,B LHS RHS P1 A,B A,B A,B RHS A-B A,B P1 LHS LHS A,B A,B C,D P1 LHS LHS RHS C2-3310-CV-061 C2-3310-FE-102 C2-3310-ST-332 C2-3310-ST-104 C2-3310-SL-112 V V V V C2-3310-ST-352 SIZE: C2-3310-ST-352 BALL MIL SCREEN FEED CONVEYOR SKIRT SIZE: MOTOR: C2-3310-FE-102 BALL MILL SCREEN FEEDER SIZE: 2134 mm x 42 m L MOTOR: 112.00 kW C2-3310-CV-061 BALL MILL SCREEN FEED CONVEYOR NO. 2 ES SIZE: C2-3310-ST-332 BALL MILL SCREEN FEED CONVEYOR HEAD CHUTE SIZE: C2-3310-ST-104 BALL MILL SCREEN FEED CHUTE ES V V ES V SIZE: C2-3310-SL-112 BALL MILL SCREEN FEEDER BELT SCALE V ES V V V ES ES V V ES AG KM LT ISSUED FOR CLIENT REVIEW 23-Dec-11 B RP ISSUED FOR COMBINED REVIEW 29-Jun-11 A 12/23/2011 K. MUNDY A. GUNSON W. BIE L. TAMELIN 12/21/2011 1:47:27 PM WBS: 3310 B PIPING AND INSTRUMENTATION DIAGRAM BALL MILL FEED 3300-25J-002 SCREEN FEEDER 102 D 4 F B A 3 2 1 5 6 8 E 7 C REV. APPROVED CHK. DES. REV. DATE REVISION DESCRIPTION CLIENT LEAD ENGINEER SCALE DRAWING NUMBER CHECK DESIGN CHECK DRAWING DESIGNED BY DRAWN BY APPROVAL DATE APPROVAL DATE APPROVED CHK. DES. REV. DATE REVISION DESCRIPTION REFERENCE DRAWING No. 1:100 0 1:200 5m 10m 0 5m 10m 15m 20m 1:500 10m 0 20m 30m 40m 50m 1:1000 0 100m 50m 1:20 0 0.5m 1m 1.5m 2m 0 1:25 0.5m 1m 1.5m 1:33 1/3 2.5m 2m 0 1m 2m 3m 0 1:50 1m 2m 3m 4m 5m CAD FILE NAME: P:0CAD000SPEM** MODEL UPDATED: DWG. FILE UPDATED: MANUAL CHANGES MADE: YES NO YES NO YES NO PROJECT MANAGER ENGINEERING MANAGER AREA PROJECTENGINEER REFERENCE DRAWINGS SAFETY SHARE: APPROVAL DATE CONTRACT NO. SAFETY SHARE : BA6CVA1.IGR NOTICE: THIS DRAWING HAS NOT BEEN PUBLISHED AND IS THE SOLE PROPERTY OF FLUOR AND IS LENT TO THE BORROWER FOR THEIR CONFIDENTIAL USE ONLY, AND IN CONSIDERATION OF THE LOAN OF THIS DRAWING, THE BORROWER PROMISES AND AGREES TO RETURN IT UPON REQUEST AND AGREES THAT IT WILL NOT BE REPRODUCED, COPIED LENT OR OTHERWISE DISPOSED OF DIRECTLY OR INDIRECTLY, NOR USED FOR ANY OTHER PURPOSE OTHER THAN WHICH IT IS FURNISHED. NONE Apr 2011 240K-C2- V V LHS 3310 00204 ZAH 3310 00205 ZAH P1 P2 P2 P1 3310 00204 ZAHH LHS C,D 3310 00205 ZAHH RHS C,D 3310 00204 ZAH 3310 00205 ZAH P1 P2 P2 P1 A,B C,D A,B A,B C,D V V V V V V V V V V 3310 00224 ZAHH LHS C,D 3310 00225 ZAHH RHS C,D 3310 00224 ZAH 3310 00225 ZAH P1 P2 P2 P1 V PRODUCT PRODUCT 3310 00282 II 3310 00282 H TI BRG REAR H,P2 HH,P1 3310 00282 G TI BRG FRONT H,P2 HH,P1 3310 00282 G TE 3310 00282 XA 3310 00282 H TE V V 3310 00282 HS 3310 00211 XA + J/SP FAULT AFD ES 3310 00292 XA 3310 00292 HS J/SP 3310 00292 II FAULT 3310 00231 XA + 3310 00241 VE 3310 00241 VT 3310 00243 TE 3310 00242 LE 3310 00242 LSL 3310 00242 LA 3310 00241 VI ES V V V V V V H, P2 HH, P1 3310 00243 TI L, P2 H, P2 HH, P1 GEAR REDUCER T4 ES NOTE: 1. THE BALL MILL SCREEN FEEDER AND BALL MILL SCREEN FEED CONVEYOR DUST SUPPRESSION SYSTEM WILL BE FURTHER DEFINED IN REVISIONS. SPRAY WATER WILL BE SUPPLIED BY THE PROCESS WATER SYSTEM.
  • 91.
    T1 T1 M 3310 00301 FIC 3310 00304 LAH 3310 00303 VSL 3310 00301 FIT 3310 00322 FIT 3310 00321 FIT 3310 00321 FFFIC M 3310 00323 VAL 3310 00324 LAH 3310 00303 VAL M 3310 00301 FFFIC 3310 00323 VT 3310 00381 XA 3310 00381 II 3310 00323 VSL 3310 00323 VE 3310 00324 LSH 3310 00321 FIC 3310 00302 FIC 3310 00304 LSH 3310 00391 II 3310 00381 HS M 3310 00303 VT 3310 00391 XA 3310 00322 FIC 3310 00303 VE 3310 00302 FIT 3310 00391 HS PROCESS WATER 1301 3900-25J-014 PROCESS WATER 1302 3900-25J-014 BALLMILL SCREEN O/S BALL MILL SCREEN OVERSIZE CONVEYOR NO. 1, 1308 3300-25J-020 PROCESS WATER 1303 3900-25J-014 C2-3310-CV-061 FEED TONNAGE 3310-WI-00230, 1299 3300-25J-002 PROCESS WATER 1300 3900-25J-014 BALL MILL SCREEN U/S PRIMARY CYCLONE FEED SUMP NO. 1, C2-3310-BX-101 1310 3300-25J-022 BALL MILL SCREEN U/S PRIMARY CYCLONE FEED SUMP NO. 1, C2-3310-BX-101 1309 3300-25J-022 TERTIARY CRUSHER SCREEN FEED CONVEYOR NO. 1, C2-3310-CV-060 1294 3300-25J-001 BALL MILL SCREEN O/S BALL MILL SCREEN OVERSIZE CONVEYOR NO. 1, 1304 3300-25J-020 TERTIARY CRUSHER SCREEN FEED CONVEYOR NO. 2, C2-3310-CV-061 1298 3300-25J-002 PRODUCT FEED TONNAGE 1293 3300-25J-001 FAULT J/SP C2-3310-CV-019 C2-3310-CV-019 PRODUCT P1 P2 P2 J/SP FAULT P1 C2-3310-ST-106 3310 00322 FE + C2-3310-BX-107 3310 00301 FV + 24"x20" 24"x10" C2-3310-ST-108 10" 4" 10" 3310 00302 FE + C2-3310-BX-108 C2-3310-SC-101 FC FC FC FC 3310 00321 FE + 24"x10" 10" 3310 00322 FV + C2-3310-ST-105 3310 00302 FV + 24"x10" 3310 00321 FV + 10" C2-3310-ST-107 SIZE: 3.6 m X 8.5 m MOTOR: C2-3310-SC-102 BALL MILL FEED SCREEN SIZE: 3.6 m X 8.5 m MOTOR: C2-3310-SC-101 BALL MILL FEED SCREEN 3310 00301 FE + 4" 4" 24"x10" 24"x20" C2-3310-SC-102 3310-WR-1353-C1A-2"-N 3310-WR-1359-C1A-2"-N 3310-WR-1351-C1A-8"-N SIZE: C2-3310-BX-108 BALL MILL SCREEN FEED BOX ES 3310-WR-1344-C1A-2"-N SIZE: C2-3310-ST-105 BALL MILL FEED SCREEN OVERSIZE CHUTE 3310-WR-1345-C1A-2"-N 3310-WR-1107-C1A-24"-N 3310-WR-1355-C1A-2"-N 3310-WR-1356-C1A-2"-N 3310-WR-1347-C1A-2"-N 3310-WR-1342-C1A-2"-N 3310-WR-1354-C1A-2"-N SIZE: C2-3310-BX-107 BALL MILL SCREEN FEED BOX SIZE: C2-3310-ST-107 BALL MILL FEED SCREEN UNDERSIZE CHUTE SIZE: C2-3310-ST-106 BALL MILL FEED SCREEN OVERSIZE CHUTE ES 3310-WR-1358-C1A-2"-N ES 3310-WR-1104-C1A-24"-N 3310-WR-1348-C1A-20"-N 3310-WR-1357-C1A-2"-N 3310-WR-1336-C1A-20"-N SIZE: C2-3310-ST-108 BALL MILL FEED SCREEN UNDERSIZE CHUTE ES 3310-WR-1339-C1A-8"-N 3310-WR-1341-C1A-2"-N 3310-WR-1343-C1A-2"-N 3310-WR-1106-C1A-8"-N ES 3310-WR-1105-C1A-8"-N ES 3310-WR-1346-C1A-2"-N AG KM LT ISSUED FOR CLIENT REVIEW 23-Dec-11 B RP ISSUED FOR COMBINED REVIEW 29-Jun-11 A 12/23/2011 K. MUNDY A. GUNSON W. BIE L. TAMELIN 12/21/2011 2:09:18 PM WBS: 3310 B PIPING AND INSTRUMENTATION DIAGRAM BALL MILL FEED 3300-25J-003 SCREENS 101 AND 102 D 4 F B A 3 2 1 5 6 8 E 7 C REV. APPROVED CHK. DES. REV. DATE REVISION DESCRIPTION CLIENT LEAD ENGINEER SCALE DRAWING NUMBER CHECK DESIGN CHECK DRAWING DESIGNED BY DRAWN BY APPROVAL DATE APPROVAL DATE APPROVED CHK. DES. REV. DATE REVISION DESCRIPTION REFERENCE DRAWING No. 1:100 0 1:200 5m 10m 0 5m 10m 15m 20m 1:500 10m 0 20m 30m 40m 50m 1:1000 0 100m 50m 1:20 0 0.5m 1m 1.5m 2m 0 1:25 0.5m 1m 1.5m 1:33 1/3 2.5m 2m 0 1m 2m 3m 0 1:50 1m 2m 3m 4m 5m CAD FILE NAME: P:0CAD000SPEM** MODEL UPDATED: DWG. FILE UPDATED: MANUAL CHANGES MADE: YES NO YES NO YES NO PROJECT MANAGER ENGINEERING MANAGER AREA PROJECTENGINEER REFERENCE DRAWINGS SAFETY SHARE: APPROVAL DATE CONTRACT NO. SAFETY SHARE : BA6CVA1.IGR NOTICE: THIS DRAWING HAS NOT BEEN PUBLISHED AND IS THE SOLE PROPERTY OF FLUOR AND IS LENT TO THE BORROWER FOR THEIR CONFIDENTIAL USE ONLY, AND IN CONSIDERATION OF THE LOAN OF THIS DRAWING, THE BORROWER PROMISES AND AGREES TO RETURN IT UPON REQUEST AND AGREES THAT IT WILL NOT BE REPRODUCED, COPIED LENT OR OTHERWISE DISPOSED OF DIRECTLY OR INDIRECTLY, NOR USED FOR ANY OTHER PURPOSE OTHER THAN WHICH IT IS FURNISHED. NONE Apr 2011 240K-C2- 3310-WR-1105-C1A-8"-N V V V 3310-WR-1106-C1A-8"-N V V V 4" 4" 4" 4" 4"
  • 92.
    PLANT AIR 1482 3900-25J-022 TERTIARYCRUSHER HPGR PRODUCT CONVEYOR NO. 1, C2-3230-CV-018 1483 3300-25J-001 TERTIARY CRUSHER BALL MILL SCREEN FEEDER, C2-3310-FE-202 1484 3300-25J-005 TERTIARY CRUSHER BALL MILL SCREEN FEED BOX, C2-3310-BX-207 1486 3300-25J-006 WATER RATIO CONTROLLER, 3310-FFFIC-00601 1487 3300-25J-006 D 4 F B A 3 2 1 5 6 8 E 7 C REV. APPROVED CHK. DES. REV. DATE REVISION DESCRIPTION CLIENT LEAD ENGINEER SCALE DRAWING NUMBER CHECK DESIGN CHECK DRAWING DESIGNED BY DRAWN BY APPROVAL DATE APPROVAL DATE APPROVED CHK. DES. REV. DATE REVISION DESCRIPTION REFERENCE DRAWING No. 1:100 0 1:200 5m 10m 0 5m 10m 15m 20m 1:500 10m 0 20m 30m 40m 50m 1:1000 0 100m 50m 1:20 0 0.5m 1m 1.5m 2m 0 1:25 0.5m 1m 1.5m 1:33 1/3 2.5m 2m 0 1m 2m 3m 0 1:50 1m 2m 3m 4m 5m CAD FILE NAME: P:0CAD000SPEM** MODEL UPDATED: DWG. FILE UPDATED: MANUAL CHANGES MADE: YES NO YES NO YES NO PROJECT MANAGER ENGINEERING MANAGER AREA PROJECTENGINEER REFERENCE DRAWINGS SAFETY SHARE: APPROVAL DATE CONTRACT NO. SAFETY SHARE : BA6CVA1.IGR NOTICE: THIS DRAWING HAS NOT BEEN PUBLISHED AND IS THE SOLE PROPERTY OF FLUOR AND IS LENT TO THE BORROWER FOR THEIR CONFIDENTIAL USE ONLY, AND IN CONSIDERATION OF THE LOAN OF THIS DRAWING, THE BORROWER PROMISES AND AGREES TO RETURN IT UPON REQUEST AND AGREES THAT IT WILL NOT BE REPRODUCED, COPIED LENT OR OTHERWISE DISPOSED OF DIRECTLY OR INDIRECTLY, NOR USED FOR ANY OTHER PURPOSE OTHER THAN WHICH IT IS FURNISHED. NONE Apr 2011 240K-C2- BIN CONTINUED ON PID 3310-25J-007 BIN CONTINUED ON PID 3300-25J-001 AG KM LT ISSUED FOR CLIENT REVIEW 23-Dec-11 B RP ISSUED FOR COMBINED REVIEW 29-Jun-11 A 12/23/2011 K. MUNDY A. GUNSON W. BIE L. TAMELIN 12/23/2011 9:40:06 AM WBS: 3310 B PIPING AND INSTRUMENTATION DIAGRAM BALL MILL FEED 3300-25J-004 SCREEN FEEDER 201 TERTIARY CRUSHER BALLMILL FEED SURGE BIN, C2-3310-BIN-301 1506 3300-25J-007 V M LHS 3310 00405 ZSH 3310 00405 ZSH 3310 00423 A SI 3310 00404 ZSH 3310 00404 ZSH 3310 00437 LAL 3310 00437 LSL 3310 00481 HS 3310 00415 A LAH 3310 00415 A LSH 3310 00416 A LI 3310 00416 LIT 3310 00416 LI 3310 00416 LE 3310 00417 LAL 3310 00417 LSL 3310 00436 A LI 3310 00426 A TI HH, P1 H, P2 3310 00436 LIT 3310 00481 XA 3310 00426 A TE 3310 00430 WIT 3310 00424 ZAH 3310 00430 WE 3310 00423 A ST 3310 00423 A SE 3310 00427 B TE 3310 00436 LE 3310 00403 A SI 3310 00407 B TE 3310 00403 B SE 3310 00406 B TI HH, P1 H, P2 3310 00408 XA P1 3310 00406 B TE 3310 00406 A TI HH, P1 H, P2 3310 00402 HSA 3310 00426 B TI 3310 00406 A TE 3310 00108 B XS 3310 00404 ZSHH LHS 3310 00408 A XS 3310 00405 ZSHH C,D RHS 3310 00405 ZSHH 3310 00403 A ST 3310 00401 HSS 3310 00403 B ST 3310 00403 SDI 3310 00426 B TE 3310 00435 A LAH 3310 00425 ZAH P1 3310 00422 HSA LHS 3310 00481 II 3310 00436 LI HH, P1 H, P2 L, P2 3310 00402 HSS RHS 3310 00403 B SI 3310 00407 B TI HH, P1 H, P2 3310 00404 ZAHH 3310 00403 A SE 3310 00405 ZAHH 3310 00407 A TI HH, P1 H, P2 3310 00407 A TE 3310 00421 HSA 3310 00435 A LSH 3310 00421 HSS 3310 00425 ZSHH A,B 3310 00422 HSS RHS 3310 00425 ZSH 3310 00424 ZSHH 3310 00424 ZSH LHS A,B 3310 00404 ZSHH LHS 3310 00401 HSA 3310 00427 A TI HH, P1 H, P2 3310 00427 A TE 3310 00427 B TI 3310 00430 WI P1 A,B P1 A-B RHS TEAR A,B C,D RHS A,B P1 LHS A,B P1 RHS RHS H, P1 LHS P1 A-B LHS A,B P1 P1 A,B LHS A,B H, P1 RHS HH, P1 H, P2 HH, P1 H, P2 RHS P2 A,B A,B RHS A,B FAULT P1 ST/SP HH, P1 H, P2 L, P2 P1 A,B C2-3310-DC-101 C2-3310-ST-202 C2-3310-ST-201 C2-3310-ST-203 C2-3310-FA-101 C2-3310-ST-333 C2-3310-SL-211 C2-3310-FE-201 C2-3310-CV-062 3310-AP-1302-C1A-2"-N C2-3310-BN-201 SIZE: C2-3310-DC-101 BALL MILL FEED BIN DUST COLLECTOR SIZE: 8000 t C2-3310-BN-201 BALL MILL FEED SURGE BIN SIZE: C2-3310-ST-201 BALL MILL SCREEN FEEDER SKIRT SIZE: C2-3310-ST-202 BALL MILL SCREEN FEEDER SKIRT SIZE: C2-3310-ST-203 BALL MILL SCREEN FEED CHUTE SIZE: C2-3310-SL-211 BALL MILL SCREEN FEEDER BELT SCALE SIZE: C2-3310-ST-333 BALL MILL SCREEN FEED CONVEYOR HEAD CHUTE TO ATMOSPHERE 3310 00423 B SE 3310 00423 B ST 3310 00423 B SI 3310 00423 SDI H, P1 3310 00435 A LE 3310 00435 B LE 3310 00435 B LSH 3310 00435 B LAH H, P1 3310 00415 A LE 3310 00415 B LE 3310 00415 B LSH 3310 00415 B LAH P1 T5 V V ES V ES V ES ES ES V V V V ES V V V ES V ES ES ES ES V LHS P2 A,B V RHS LHS LHS A,B LHS RHS LHS RHS 3310 00430 SE C2-3310-ST-353 C2-3310-ST-177 C2-3310-ST-178 SIZE: C2-3310-ST-177 BALL MILL FEED BIN INSERT SIZE: C2-3310-ST-178 BALL MILL FEED BIN INSERT SIZE: 2134 mm X 42 m L MOTOR: 112.00 kW C2-3310-CV-062 BALL MILL SCREEN FEED CONVEYOR NO. 3 SIZE: MOTOR: C2-3310-FE-201 BALL MILL SCREEN FEEDER SIZE: MOTOR: C2-3310-FA-101 BALL MILL FEED BIN DUST COLLECTOR FAN SIZE: C2-3310-ST-353 BALL MILL SCREEN FEED CONVEYOR SKIRT PRODUCT M 3310 00483 HS 3310 00483 XA 3310 00483 II FAULT ST/SP C2-3310-DC-171 C2-3310-FA-171 TO ATMOSPHERE SIZE: C2-3310-DC-171 BALL MILL FEED BIN DUST COLLECTOR SIZE: MOTOR: C2-3310-FA-171 BALL MILL FEED BIN DUST COLLECTOR FAN V V V V V V A,B A,B 3310 00405 ZAH 3310 00404 ZAH P2 P2 3310 00404 ZAHH 3310 00405 ZAHH RHS C, D P1 LHS C, D P1 3310 00405 ZAH 3310 00404 ZAH P2 P2 V C,D V C,D V V V V A,B A,B 3310 00425 ZAHH 3310 00424 ZAHH P1 PRODUCT PRODUCT 3310-AP-1303-C1A-2"-N PRODUCT VENDOR VENDOR 3310 00482 II 3310 00482 H TI BRG REAR H,P2 HH,P1 3310 00482 G TI BRG FRONT H,P2 HH,P1 3310 00482 G TE 3310 00482 XA 3310 00482 H TE V V 3310 00482 HS 3310 00411 XA + J/SP FAULT AFD 3310 00492 XA 3310 00492 HS J/SP 3310 00492 II FAULT 3310 00431 XA + 3310 00441 VE 3310 00441 VT 3310 00443 TE 3310 00442 LE 3310 00442 LSL 3310 00442 LA 3310 00441 VI ES V V V V V V H, P2 HH, P1 3310 00443 TI L, P2 H, P2 HH, P1 GEAR REDUCER T4 ES 3310 00419 PDAH 3310 00439 PDAH NOTE: 1. THE BALL MILL SCREEN FEEDER AND BALL MILL SCREEN FEED CONVEYOR DUST SUPPRESSION SYSTEM WILL BE FURTHER DEFINED IN REVISIONS. SPRAY WATER WILL BE SUPPLIED BY THE PROCESS WATER SYSTEM.
  • 93.
    T5 RHS 3310 00504 ZSHH 3310 00505 ZSHH RHS 3310 00523 B ST 3310 00503 B ST 3310 00527A TE 3310 00535 B LAH P1 3310 00525 ZAH 3310 00504 ZAHH 3310 00505 ZAH 3310 00504 ZAH 3310 00524 ZAH P2 3310 00505 ZAH 3310 00504 ZAH 3310 00507 B TE 3310 00506 B TE 3310 00525 ZSHH A,B 3310 00504 ZAHH 3310 00505 ZAHH P1 3310 00527 B TE 3310 00525 ZSH RHS 3310 00506 A TI HH, P1 H, P2 3310 00535 A LSH 3310 00526 A TE 3310 00504 ZSHH LHS A,B 3310 00508 XA A,B P1 3310 00524 ZSH LHS A,B 3310 00506 B TI HH, P1 H, P2 3310 00527 B TI 3310 00526 B TE 3310 00501 A HSS 3310 00503 B SE 3310 00535 B LSH 3310 00503 A SI 3310 00504 ZSH LHS 3310 00505 ZSH 3310 00523 B SE 3310 00530 SE 3310 00505 ZAHH P1 3310 00515 A LSH 3310 00530 WIT 3310 00521 HSA LHS 3310 00523 A SI 3310 00502 A HSS RHS 3310 00503 SDI 3310 00523 A SE 3310 00525 ZAHH 3310 00526 B TI HH, P1 H, P2 3310 00503 A ST 3310 00527 A TI HH, P1 H, P2 3310 00508 A XS TEAR 3310 00508 B XS 3310 00515 B LE 3310 00522 HSS RHS 3310 00521 HSS 3310 00524 ZSHH 3310 00526 A TI HH, P1 H, P2 3310 00535 B LE 3310 00505 ZSH 3310 00524 ZAHH 3310 00535 A LE 3310 00507 A TI 3310 00535 A LAH P1 3310 00507 A TE 3310 00530 WI 3310 00523 SDI H, P1 3310 00507 B TI 3310 00505 ZSHH A,B 3310 00504 ZSH A, B 3310 00503 B SI 3310 00506 A TE 3310 00523 A ST 3310 00530 WE 3310 00522 HSA RHS A,B 3310 00515 A LE 3310 00515 B LAH P1 3310 00501 HSA 3310 00503 A SE 3310 00515 A LAH P1 3310 00515 B LSH 3310 00502 HSA 3310 00523 B SI WATER RATIO CONTROLLER, 3310-FFFIC-00621 1589 3300-25J-006 TERTIARY CRUSHER BALL MILL SCREEN FEED BOX, C2-3310-BX-208 1588 3300-25J-006 TERTIARY CRUSHER BALL MILL FEED SURGE BIN, C2-3310-BN-201 1484 3300-25J-004 RHS LHS RHS LHS A,B P1 LHS PRODUCT RHS C,D P1 P2 P2 RHS A,B LHS C,D P1 A,B P1 P1 P2 P2 P2 C,D C,D LHS A,B HH, P1 H, P2 P1 RHS A,B HH, P1 H, P2 LHS A,B LHS A,B A,B P1 A-B H, P1 A,B RHS HH, P1 H, P2 LHS A,B A,B C,D A,B P1 RHS RHS LHS A-B C,D LHS SIZE: C2-3310-ST-334 BALL MILL SCREEN FEED CONVEYOR HEAD CHUTE V V V V V V V V V V V V V V V C2-3310-ST-334 C2-3310-ST-204 C2-3310-SL-212 SIZE: C2-3310-SL-212 BALL MILL SCREEN FEEDER BELT SCALE C2-3310-CV-063 SIZE: C2-3310-ST-204 BALL MILL SCREEN FEED CHUTE C2-3310-FE-202 SIZE: MOTOR: C2-3310-FE-202 BALL MILL SCREEN FEEDER SIZE: 2134 mm x 42 m L MOTOR: 112.00 kW C2-3310-CV-063 BALL MILL SCREEN FEED CONVEYOR NO. 4 C2-3310-ST-354 SIZE: C2-3310-ST-354 BALL MILL SCREEN FEED CONVEYOR SKIRT ES V ES ES ES V V ES ES ES V ES V V V V V ES AG KM LT ISSUED FOR CLIENT REVIEW 23-Dec-11 B RP ISSUED FOR COMBINED REVIEW 29-Jun-11 A 12/23/2011 K. MUNDY A. GUNSON W. BIE L. TAMELIN 12/21/2011 2:30:58 PM WBS: 3310 B PIPING AND INSTRUMENTATION DIAGRAM BALL MILL FEED 3300-25J-005 SCREEN FEEDER 202 V V V D 4 F B A 3 2 1 5 6 8 E 7 C REV. APPROVED CHK. DES. REV. DATE REVISION DESCRIPTION CLIENT LEAD ENGINEER SCALE DRAWING NUMBER CHECK DESIGN CHECK DRAWING DESIGNED BY DRAWN BY APPROVAL DATE APPROVAL DATE APPROVED CHK. DES. REV. DATE REVISION DESCRIPTION REFERENCE DRAWING No. 1:100 0 1:200 5m 10m 0 5m 10m 15m 20m 1:500 10m 0 20m 30m 40m 50m 1:1000 0 100m 50m 1:20 0 0.5m 1m 1.5m 2m 0 1:25 0.5m 1m 1.5m 1:33 1/3 2.5m 2m 0 1m 2m 3m 0 1:50 1m 2m 3m 4m 5m CAD FILE NAME: P:0CAD000SPEM** MODEL UPDATED: DWG. FILE UPDATED: MANUAL CHANGES MADE: YES NO YES NO YES NO PROJECT MANAGER ENGINEERING MANAGER AREA PROJECTENGINEER REFERENCE DRAWINGS SAFETY SHARE: APPROVAL DATE CONTRACT NO. SAFETY SHARE : BA6CVA1.IGR NOTICE: THIS DRAWING HAS NOT BEEN PUBLISHED AND IS THE SOLE PROPERTY OF FLUOR AND IS LENT TO THE BORROWER FOR THEIR CONFIDENTIAL USE ONLY, AND IN CONSIDERATION OF THE LOAN OF THIS DRAWING, THE BORROWER PROMISES AND AGREES TO RETURN IT UPON REQUEST AND AGREES THAT IT WILL NOT BE REPRODUCED, COPIED LENT OR OTHERWISE DISPOSED OF DIRECTLY OR INDIRECTLY, NOR USED FOR ANY OTHER PURPOSE OTHER THAN WHICH IT IS FURNISHED. NONE Apr 2011 240K-C2- PRODUCT 3310 00582 II 3310 00582 H TI BRG REAR H,P2 HH,P1 3310 00582 G TI BRG FRONT H,P2 HH,P1 3310 00582 G TE 3310 00582 XA 3310 00582 H TE V V 3310 00582 HS 3310 00511 XA + J/SP FAULT AFD 3310 00592 XA 3310 00592 HS J/SP 3310 00592 II FAULT 3310 00531 XA + 3310 00541 VE 3310 00541 VT 3310 00543 TE 3310 00542 LE 3310 00542 LSL 3310 00542 LA 3310 00541 VI ES V V V V V V H, P2 HH, P1 3310 00543 TI L, P2 H, P2 HH, P1 GEAR REDUCER T4 NOTE: 1. THE BALL MILL SCREEN FEEDER AND BALL MILL SCREEN FEED CONVEYOR DUST SUPPRESSION SYSTEM WILL BE FURTHER DEFINED IN REVISIONS. SPRAY WATER WILL BE SUPPLIED BY THE PROCESS WATER SYSTEM.
  • 94.
    D 4 F B A 3 2 1 5 68 E 7 C REV. APPROVED CHK. DES. REV. DATE REVISION DESCRIPTION CLIENT LEAD ENGINEER SCALE DRAWING NUMBER CHECK DESIGN CHECK DRAWING DESIGNED BY DRAWN BY APPROVAL DATE APPROVAL DATE APPROVED CHK. DES. REV. DATE REVISION DESCRIPTION REFERENCE DRAWING No. 1:100 0 1:200 5m 10m 0 5m 10m 15m 20m 1:500 10m 0 20m 30m 40m 50m 1:1000 0 100m 50m 1:20 0 0.5m 1m 1.5m 2m 0 1:25 0.5m 1m 1.5m 1:33 1/3 2.5m 2m 0 1m 2m 3m 0 1:50 1m 2m 3m 4m 5m CAD FILE NAME: P:0CAD000SPEM** MODEL UPDATED: DWG. FILE UPDATED: MANUAL CHANGES MADE: YES NO YES NO YES NO PROJECT MANAGER ENGINEERING MANAGER AREA PROJECTENGINEER REFERENCE DRAWINGS SAFETY SHARE: APPROVAL DATE CONTRACT NO. SAFETY SHARE : BA6CVA1.IGR NOTICE: THIS DRAWING HAS NOT BEEN PUBLISHED AND IS THE SOLE PROPERTY OF FLUOR AND IS LENT TO THE BORROWER FOR THEIR CONFIDENTIAL USE ONLY, AND IN CONSIDERATION OF THE LOAN OF THIS DRAWING, THE BORROWER PROMISES AND AGREES TO RETURN IT UPON REQUEST AND AGREES THAT IT WILL NOT BE REPRODUCED, COPIED LENT OR OTHERWISE DISPOSED OF DIRECTLY OR INDIRECTLY, NOR USED FOR ANY OTHER PURPOSE OTHER THAN WHICH IT IS FURNISHED. NONE Apr 2011 240K-C2- 10" C2-3310-ST-206 C2-3310-ST-208 C2-3310-SC-202 10" C2-3310-BX-208 3310 00621 FV + 3310 00601 FE + J/SP P2 J/SP P1 FAULT FAULT 3310 00621 FE + 10" 3310 00622 FV + 24"x20" 3310 00622 FE + 4" 4" 4" C2-3310-ST-207 P1 P2 3310 00681 XA 3310 00602 FV + 3310 00604 LAH 3310 00602 FIC 3310 00602 FE + 3310 00602 FIT 3310 00603 VSL C2-3310-SC-201 3310 00603 VE 3310 00603 VT 3310 00601 FIC 24"x20" 3310 00601 FIT C2-3310-ST-205 3310 00603 VAL 3310 00681 II 24"x10" 3310 00604 LSH 3310 00681 HS 3310 00601 FFFIC M 3310 00621 FFFIC M 3310 00691 HS 3310 00691 XA 3310 00691 II 3310 00624 LAH 3310 00624 LSH 10" 3310 00623 VAL 3310 00623 VSL 3310 00623 VT M 24"x10" M 3310 00623 VE 3310 00622 FIC 3310 00622 FIT 3310 00601 FV + 24"x10" 3310 00621 FIC C2-3310-BX-207 24"x10" 3310 00621 FIT C2-3310-CV-062 FEED TONNAGE, 3310-WI-00430 1487 3300-25J-004 TERTIARY CRUSHER SCREEN FEED CONVEYOR NO. 3, C2-3310-CV-062 1486 3300-25J-004 BALL MILL SCREEN O/S BALL MILL SCREEN OVERSIZE CONVEYOR NO. 1, 1305 3300-25J-020 BALL MILL SCREEN O/S BALL MILL SCREEN OVERSIZE CONVEYOR NO. 1, 1375 3300-25J-020 PROCESS WATER 1584 3900-25J-014 PROCESS WATER 1583 3900-25J-014 PROCESS WATER 1586 3900-25J-014 PROCESS WATER 1585 3900-25J-014 TERTIARY CRUSHER SCREEN FEED CONVEYOR NO. 4, C2-3310-CV-063 1588 3300-25J-005 C2-3310-CV-063 FEED TONNAGE, 3310-WI-00530 1589 3300-25J-005 BALL MILL SCREEN U/S PRIMARY CYCLONE FEED SUMP NO. 2, C2-3310-BX-201 1592 3300-25J-026 BALL MILL SCREEN U/S PRIMARY CYCLONE FEED SUMP NO. 2, C2-3310-BX-201 1591 3300-25J-026 T1 T1 ES 3310-WR-1098-C1A-8"-N 3310-WR-1375-C1A-8"-N 3310-WR-1099-C1A-8"-N 3310-WR-1381-C1A-2"-N 3310-WR-1362-C1A-20"-N ES 3310-WR-1363-C1A-8"-N SIZE: C2-3310-BX-207 BALL MILL SCREEN FEED BOX SIZE: C2-3310-BX-208 BALL MILL SCREEN FEED BOX 3310-WR-1379-C1A-2"-N 3310-WR-1382-C1A-2"-N 3310-WR-1097-C1A-24"-N 3310-WR-1369-C1A-2"-N SIZE: C2-3310-ST-206 BALL MILL SCREEN OVERSIZE CHUTE 3310-WR-1368-C1A-2"-N 3310-WR-1372-C1A-20"-N 3310-WR-1370-C1A-2"-N SIZE: C2-3310-ST-208 BALL MILL FEED SCREEN UNDERSIZE CHUTE SIZE: C2-3310-ST-207 BALL MILL FEED SCREEN UNDERSIZE CHUTE 3310-WR-1100-C1A-24"-N 3310-WR-1366-C1A-2"-N 3310-WR-1365-C1A-2"-N 3310-WR-1377-C1A-2"-N 3310-WR-1371-C1A-2"-N ES ES 3310-WR-1383-C1A-2"-N ES 3310-WR-1380-C1A-2"-N 3310-WR-1378-C1A-2"-N SIZE: C2-3310-ST-205 BALL MILL SCREEN OVERSIZE CHUTE 3310-WR-1367-C1A-2"-N AG KM LT ISSUED FOR CLIENT REVIEW 23-Dec-11 B RP ISSUED FOR COMBINED REVIEW 29-Jun-11 A 12/23/2011 K. MUNDY A. GUNSON W. BIE L. TAMELIN 12/21/2011 3:06:01 PM WBS: 3310 B PIPING AND INSTRUMENTATION DIAGRAM BALL MILL FEED 3300-25J-006 SCREENS 201 AND 202 SIZE: 3.6 m X 8.5 m MOTOR: C2-3310-SC-202 BALL MILL FEED SCREEN SIZE: 3.6 m X 8.5 m MOTOR: C2-3310-SC-201 BALL MILL FEED SCREEN FC FC FC FC PRODUCT PRODUCT C2-3310-CV-019 C2-3310-CV-019 3310-WR-1099-C1A-8"-N V V V ES 3310-WR-1098-C1A-8"-N V V V 4" 4" 4" 4" 4"
  • 95.
    PLANT AIR 1504 3900-25J-022 TERTIARYCRUSHER HPGR PRODUCT CONVEYOR NO. 1, C2-3230-CV-018 1506 3300-25J-004 TERTIARY CRUSHER BALL MILL SCREEN FEEDER, C2-3310-FE-302 1516 3300-25J-008 TERTIARY CRUSHER BALL MILL SCREEN FEED BOX, C2-3310-BX-307 1518 3300-25J-009 WATER RATIO CONTROLLER, 3310-FFFIC-09901 1519 3300-25J-009 D 4 F B A 3 2 1 5 6 8 E 7 C REV. APPROVED CHK. DES. REV. DATE REVISION DESCRIPTION CLIENT LEAD ENGINEER SCALE DRAWING NUMBER CHECK DESIGN CHECK DRAWING DESIGNED BY DRAWN BY APPROVAL DATE APPROVAL DATE APPROVED CHK. DES. REV. DATE REVISION DESCRIPTION REFERENCE DRAWING No. 1:100 0 1:200 5m 10m 0 5m 10m 15m 20m 1:500 10m 0 20m 30m 40m 50m 1:1000 0 100m 50m 1:20 0 0.5m 1m 1.5m 2m 0 1:25 0.5m 1m 1.5m 1:33 1/3 2.5m 2m 0 1m 2m 3m 0 1:50 1m 2m 3m 4m 5m CAD FILE NAME: P:0CAD000SPEM** MODEL UPDATED: DWG. FILE UPDATED: MANUAL CHANGES MADE: YES NO YES NO YES NO PROJECT MANAGER ENGINEERING MANAGER AREA PROJECTENGINEER REFERENCE DRAWINGS SAFETY SHARE: APPROVAL DATE CONTRACT NO. SAFETY SHARE : BA6CVA1.IGR NOTICE: THIS DRAWING HAS NOT BEEN PUBLISHED AND IS THE SOLE PROPERTY OF FLUOR AND IS LENT TO THE BORROWER FOR THEIR CONFIDENTIAL USE ONLY, AND IN CONSIDERATION OF THE LOAN OF THIS DRAWING, THE BORROWER PROMISES AND AGREES TO RETURN IT UPON REQUEST AND AGREES THAT IT WILL NOT BE REPRODUCED, COPIED LENT OR OTHERWISE DISPOSED OF DIRECTLY OR INDIRECTLY, NOR USED FOR ANY OTHER PURPOSE OTHER THAN WHICH IT IS FURNISHED. NONE Apr 2011 240K-C2- AG KM LT ISSUED FOR CLIENT REVIEW 23-Dec-11 B RP ISSUED FOR COMBINED REVIEW 29-Jun-11 A 12/23/2011 K. MUNDY A. GUNSON W. BIE L. TAMELIN 12/23/2011 9:43:17 AM WBS: 3310 B PIPING AND INSTRUMENTATION DIAGRAM BALL MILL FEED 3300-25J-007 SCREEN FEEDER 301 BIN CONTINUED ON PID 3310-25J-010 BIN CONTINUED ON PID 3300-25J-004 V M LHS 3310 00705 ZSH 3310 00705 ZSH 3310 00723 A SI 3310 00704 ZSH 3310 00704 ZSH 3310 00737 LAL 3310 00737 LSL 3310 00781 HS 3310 00715 A LAH 3310 00715 A LSH 3310 00716 A LI 3310 00716 LIT 3310 00716 LI 3310 00716 LE 3310 00717 LAL 3310 00717 LSL 3310 00736 A LI 3310 00726 A TI HH, P1 H, P2 3310 00736 LIT 3310 00781 XA 3310 00726 A TE 3310 00730 WIT 3310 00724 ZAH 3310 00730 WE 3310 00723 A ST 3310 00723 A SE 3310 00727 B TE 3310 00736 LE 3310 00703 A SI 3310 00707 B TE 3310 00703 B SE 3310 00706 B TI HH, P1 H, P2 3310 00708 XA P1 3310 00706 B TE 3310 00706 A TI HH, P1 H, P2 3310 00702 HSA 3310 00726 B TI 3310 00706 A TE 3310 00708 B XS 3310 00704 ZSHH LHS 3310 00708 A XS 3310 00705 ZSHH C,D RHS 3310 00705 ZSHH 3310 00703 A ST 3310 00701 HSS 3310 00703 B ST 3310 00703 SDI 3310 00726 B TE 3310 00735 A LAH 3310 00725 ZAH P1 3310 00722 HSA LHS 3310 00781 II 3310 00736 LI HH, P1 H, P2 L, P2 3310 00702 HSS RHS 3310 00703 B SI 3310 00707 B TI HH, P1 H, P2 3310 00704 ZAHH 3310 00703 A SE 3310 00705 ZAHH 3310 00707 A TI HH, P1 H, P2 3310 00707 A TE 3310 00721 HSA 3310 00735 A LSH 3310 00721 HSS 3310 00725 ZSHH A,B 3310 00722 HSS RHS 3310 00725 ZSH 3310 00724 ZSHH 3310 00724 ZSH LHS A,B 3310 00704 ZSHH LHS 3310 00701 HSA 3310 00727 A TI HH, P1 H, P2 3310 00727 A TE 3310 00727 B TI 3310 00730 WI P1 A,B P1 A-B RHS TEAR A,B C,D RHS A,B P1 LHS A,B P1 RHS RHS H, P1 LHS P1 A-B LHS A,B P1 P1 A,B LHS A,B H, P1 RHS HH, P1 H, P2 HH, P1 H, P2 RHS P2 A,B A,B RHS A,B FAULT P1 ST/SP HH, P1 H, P2 L, P2 P1 A,B C2-3310-DC-301 C2-3310-ST-302 C2-3310-ST-301 C2-3310-ST-303 C2-3310-FA-301 C2-3310-ST-335 C2-3310-SL-311 C2-3310-FE-301 C2-3310-CV-064 3310-AP-1304-C1A-2"-N C2-3310-BN-301 SIZE: C2-3310-DC-301 BALL MILL FEED BIN DUST COLLECTOR SIZE: C2-3310-BN-301 BALL MILL FEED SURGE BIN SIZE: C2-3310-ST-301 BALL MILL SCREEN FEEDER SKIRT SIZE: C2-3310-ST-302 BALL MILL SCREEN FEEDER SKIRT SIZE: C2-3310-ST-303 BALL MILL SCREEN FEED CHUTE SIZE: C2-3310-SL-311 BALL MILL SCREEN FEEDER BELT SCALE SIZE: C2-3310-ST-335 BALL MILL SCREEN FEED CONVEYOR HEAD CHUTE TO ATMOSPHERE 3310 00723 B SE 3310 00723 B ST 3310 00723 B SI 3310 00723 SDI H, P1 3310 00735 A LE 3310 00735 B LE 3310 00735 B LSH 3310 00735 B LAH H, P1 3310 00715 A LE 3310 00715 B LE 3310 00715 B LSH 3310 00715 B LAH P1 T5 V V ES V ES V ES ES ES V V V V ES V V V ES V ES ES ES ES V LHS P2 A,B V RHS LHS LHS A,B LHS RHS LHS RHS 3310 00730 SE C2-3310-ST-355 C2-3310-ST-179 C2-3310-ST-180 SIZE: C2-3310-ST-179 BALL MILL FEED BIN INSERT SIZE: C2-3310-ST-180 BALL MILL FEED BIN INSERT SIZE: 2134 mm X 42 m L MOTOR: 112.00 kW C2-3310-CV-064 BALL MILL SCREEN FEED CONVEYOR NO. 5 SIZE: MOTOR: C2-3310-FE-301 BALL MILL SCREEN FEEDER SIZE: MOTOR: C2-3310-FA-301 BALL MILL FEED BIN DUST COLLECTOR FAN SIZE: C2-3310-ST-355 BALL MILL SCREEN FEED CONVEYOR SKIRT PRODUCT M 3310 00783 HS 3310 00783 XA 3310 00783 II FAULT ST/SP C2-3310-DC-201 C2-3310-FA-201 TO ATMOSPHERE SIZE: C2-3310-DC-201 BALL MILL FEED BIN DUST COLLECTOR SIZE: MOTOR: C2-3310-FA-201 BALL MILL FEED BIN DUST COLLECTOR FAN V V V V V V A,B A,B 3310 00705 ZAH 3310 00704 ZAH P2 P2 3310 00704 ZAHH 3310 00705 ZAHH RHS C, D P1 LHS C, D P1 3310 00705 ZAH 3310 00704 ZAH P2 P2 V C,D V C,D V V V V A,B A,B 3310 00725 ZAHH 3310 00724 ZAHH P1 PRODUCT PRODUCT 3310-AP-1305-C1A-2"-N VENDOR VENDOR 3310 00782 II 3310 00782 H TI BRG REAR H,P2 HH,P1 3310 00782 G TI BRG FRONT H,P2 HH,P1 3310 00782 G TE 3310 00782 XA 3310 00782 H TE V V 3310 00782 HS 3310 00711 XA + J/SP FAULT AFD 3310 00792 XA 3310 00792 HS J/SP 3310 00792 II FAULT 3310 00731 XA + 3310 00741 VE 3310 00741 VT 3310 00743 TE 3310 00742 LE 3310 00742 LSL 3310 00742 LA 3310 00741 VI ES V V V V V V H, P2 HH, P1 3310 00743 TI L, P2 H, P2 HH, P1 GEAR REDUCER T4 ES 3310 00719 PDAH 3310 00739 PDAH NOTE: 1. THE BALL MILL SCREEN FEEDER AND BALLMILL SCREEN FEED CONVEYOR DUST SUPPRESSION SYSTEM WILL BE FURTHER DEFINED IN REVISIONS. SPRAY WATER WILL BE SUPPLIED BY THE PROCESS WATER SYSTEM.
  • 96.
    D 4 F B A 3 2 1 5 68 E 7 C REV. APPROVED CHK. DES. REV. DATE REVISION DESCRIPTION CLIENT LEAD ENGINEER SCALE DRAWING NUMBER CHECK DESIGN CHECK DRAWING DESIGNED BY DRAWN BY APPROVAL DATE APPROVAL DATE APPROVED CHK. DES. REV. DATE REVISION DESCRIPTION REFERENCE DRAWING No. 1:100 0 1:200 5m 10m 0 5m 10m 15m 20m 1:500 10m 0 20m 30m 40m 50m 1:1000 0 100m 50m 1:20 0 0.5m 1m 1.5m 2m 0 1:25 0.5m 1m 1.5m 1:33 1/3 2.5m 2m 0 1m 2m 3m 0 1:50 1m 2m 3m 4m 5m CAD FILE NAME: P:0CAD000SPEM** MODEL UPDATED: DWG. FILE UPDATED: MANUAL CHANGES MADE: YES NO YES NO YES NO PROJECT MANAGER ENGINEERING MANAGER AREA PROJECTENGINEER REFERENCE DRAWINGS SAFETY SHARE: APPROVAL DATE CONTRACT NO. SAFETY SHARE : BA6CVA1.IGR NOTICE: THIS DRAWING HAS NOT BEEN PUBLISHED AND IS THE SOLE PROPERTY OF FLUOR AND IS LENT TO THE BORROWER FOR THEIR CONFIDENTIAL USE ONLY, AND IN CONSIDERATION OF THE LOAN OF THIS DRAWING, THE BORROWER PROMISES AND AGREES TO RETURN IT UPON REQUEST AND AGREES THAT IT WILL NOT BE REPRODUCED, COPIED LENT OR OTHERWISE DISPOSED OF DIRECTLY OR INDIRECTLY, NOR USED FOR ANY OTHER PURPOSE OTHER THAN WHICH IT IS FURNISHED. NONE Apr 2011 240K-C2- 3310 00808 XA 3310 00823 A SI 3310 00825 ZSHH A,B 3310 00803 SDI 3310 00826 A TI 3310 00803 B ST 3310 00821 HSS HH, P1 H, P2 3310 00802 HSA 3310 00822 HSS 3310 00806 A TI RHS C2-3310-ST-304 HH, P1 H, P2 RHS A,B A,B 3310 00803 B SE 3310 00827 A TI 3310 00807 B TE HH, P1 H, P2 HH, P1 H, P2 3310 00825 ZSH LHS 3310 00801 HSA RHS 3310 00827 A TE 3310 00830 WIT LHS H, P1 A,B C2-3310-ST-336 3310 00826 A TE C2-3310-SL-312 RHS 3310 00824 ZAHH A,B P1 3310 00830 WE TEAR LHS 3310 00808 A XS 3310 00823 A SE SIZE: C2-3310-ST-304 BALL MILL SCREEN FEED CHUTE 3310 00804 ZSHH 3310 00806 B TI 3310 00806 A TE LHS HH, P1 H, P2 RHS SIZE: C2-3310-SL-312 BALL MILL SCREEN FEEDER BELT SCALE A,B C,D SIZE: C2-3310-ST-336 BALL MILL SCREEN FEED CONVEYOR HEAD CHUTE 3310 00824 ZSHH 3310 00803 B SI LHS 3310 00827 B TI 3310 00822 HSA C2-3310-FE-302 3310 00824 ZSH 3310 00803 A SE A,B A,B RHS A,B A,B 3310 00803 A SI 3310 00806 B TE RHS 3310 00803 A ST 3310 00827 B TE A,B P1 HH, P1 H, P2 3310 00825 ZAHH 3310 00801 HSS 3310 00807 A TI 3310 00826 B TI HH, P1 H, P2 3310 00823 A ST 3310 00805 ZSH 3310 00802 HSS 3310 00807 A TE C,D RHS HH, P1 H, P2 3310 00821 HSA 3310 00826 B TE A-B 3310 00807 B TI LHS 3310 00804 ZSH A,B A-B LHS 3310 00805 ZSHH 3310 00830 WI P1 P1 3310 00830 SE 3310 00808 B XS LHS RHS P1 3310 00804 ZSH 3310 00805 ZSH C2-3310-CV-065 3310 00823 SDI H, P1 3310 00815 B LSH 3310 00815 B LAH P1 3310 00815 B LE 3310 00815 A LSH 3310 00815 A LAH P1 3310 00815 A LE 3310 00835 B LSH 3310 00835 B LAH P1 3310 00835 B LE 3310 00835 A LSH 3310 00835 A LAH P1 3310 00835 A LE 3310 00823 B SI 3310 00823 B SE 3310 00823 B ST TERTIARY CRUSHER BALL MILL FEED SURGE BIN, C2-3310-BN-301 1516 3300-25J-007 WATER RATIO CONTROLLER, 3310-FFFIC-00921 1630 3300-25J-009 TERTIARY CRUSHER BALL MILL SCREEN FEED BOX, C2-3310-BX-308 1631 3300-25J-009 T5 V ES V V V ES ES ES V V V ES V ES ES V ES ES AG KM LT ISSUED FOR CLIENT REVIEW 23-Dec-11 B RP ISSUED FOR COMBINED REVIEW 29-Jun-11 A 12/23/2011 K. MUNDY A. GUNSON W. BIE L. TAMELIN 12/21/2011 3:19:10 PM WBS: 3310 B PIPING AND INSTRUMENTATION DIAGRAM BALL MILL FEED 3300-25J-008 SCREEN FEEDER 302 3310 00804 ZSHH 3310 00805 ZSHH V V V V RHS LHS A,B RHS LHS LHS RHS RHS LHS SIZE: MOTOR: C2-3310-FE-302 BALL MILL SCREEN FEEDER SIZE: 2134 mm x 42 m L MOTOR: 112.00 kW C2-3310-CV-065 BALL MIL SCREEN FEED CONVEYOR NO. 6 C2-3310-ST-356 SIZE: C2-3310-ST-356 BALL MILL SCREEN FEED CONVEYOR SKIRT 3310 00824 ZAH 3310 00825 ZAH LHS A,B P1 P1 P2 P2 V V V V V C,D C,D V V 3310 00804 ZAHH RHS C,D 3310 00805 ZAHH 3310 00804 ZAH 3310 00805 ZAH LHS C,D P1 P1 P2 P2 3310 00804 ZAHH RHS A,B 3310 00805 ZAHH 3310 00804 ZAH 3310 00805 ZAH LHS A,B P1 P1 P2 P2 V V V A,B A,B A,B V V V V PRODUCT PRODUCT 3310 00882 II 3310 00882 H TI BRG REAR H,P2 HH,P1 3310 00882 G TI BRG FRONT H,P2 HH,P1 3310 00882 G TE 3310 00882 XA 3310 00882 H TE V V 3310 00882 HS 3310 00811 XA + J/SP FAULT AFD GEAR REDUCER 3310 00892 XA 3310 00892 HS J/SP 3310 00892 II FAULT 3310 00831 XA + 3310 00841 VE 3310 00841 VT 3310 00843 TE 3310 00842 LE 3310 00842 LSL 3310 00842 LA 3310 00841 VI ES V V V V V V H, P2 HH, P1 3310 00843 TI L, P2 H, P2 HH, P1 T4 NOTE: 1. THE BALL MILL SCREEN FEEDER AND BALL MILL SCREEN FEED CONVEYOR DUST SUPPRESSION SYSTEM WILL BE FURTHER DEFINED IN REVISIONS. SPRAY WATER WILL BE SUPPLIED BY THE PROCESS WATER SYSTEM.
  • 97.
    3310 09901 FFFIC 3310 00924 LAH 3310 00991 II 3310 00903 VAL 3310 00921 FIC 3310 00924 LSH 3310 00991 HS 3310 09901 FIC 3310 00922 FIC 3310 00923 VE 3310 00921 FIT 3310 00981 II 3310 00923 VT 3310 00902 FIC 3310 09901 FIT M 3310 00991 XA M 3310 00904 LAH 3310 00902 FIT 3310 00921 FFFIC 3310 00923 VSL 3310 00981 HS 3310 00904 LSH 3310 00922 FIT 3310 00903 VT M 3310 00981 XA M 3310 00903 VE 3310 00903 VSL 3310 00923 VAL J/SP FAULT P1 P2 P1 J/SP P2 FAULT 3310 00902 FV + 3310-WR-1403-C1A-2"-N 3310-WR-1405-C1A-2"-N 3310-WR-1392-C1A-2"-N 3310-WR-1384-C1A-20"-N SIZE: C2-3310-ST-308 BALL MILL FEEDSCREEN UNDERSIZE CHUTE 3310 09901 FV + C2-3310-ST-307 SIZE: C2-3310-ST-305 BALL MILL SCREEN OVERSIZE CHUTE 3310 00921 FV + 3310-WR-1406-C1A-2"-N 3310-WR-1404-C1A-2"-N 3310-WR-1389-C1A-2"-N 3310-WR-1402-C1A-2"-N 3310 00921 FE + 3310-WR-1399-C1A-8"-N 3310-WR-1387-C1A-8"-N 4" C2-3310-ST-306 10" C2-3310-BX-308 4" 3310 00922 FE + SIZE: C2-3310-ST-306 BALL MILL SCREEN OVERSIZE CHUTE 3310-WR-1396-C1A-20"-N 24"x20" C2-3310-ST-305 3310-WR-1093-C1A-8"-N 3310 00922 FV + 24"x10" 3310-WR-1091-C1A-24"-N 3310-WR-1407-C1A-2"-N 3310-WR-1393-C1A-2"-N 10" 3310-WR-1391-C1A-2"-N 24"x20" 3310-WR-1094-C1A-24"-N 3310-WR-1092-C1A-8"-N 24"x10" SIZE: C2-3310-BX-307 BALL MILL SCREEN FEED BOX 3310-WR-1394-C1A-2"-N C2-3310-SC-302 10" 10" 4" C2-3310-BX-307 3310-WR-1390-C1A-2"-N SIZE: C2-3310-ST-307 BALL MILL FEED SCREEN UNDERSIZE CHUTE 3310 00902 FE + 3310-WR-1395-C1A-2"-N C2-3310-ST-308 3310-WR-1401-C1A-2"-N 24"x10" C2-3310-SC-301 SIZE: C2-3310-BX-308 BALL MILL SCREEN FEED BOX 24"x10" D 4 F B A 3 2 1 5 6 8 E 7 C REV. APPROVED CHK. DES. REV. DATE REVISION DESCRIPTION CLIENT LEAD ENGINEER SCALE DRAWING NUMBER CHECK DESIGN CHECK DRAWING DESIGNED BY DRAWN BY APPROVAL DATE APPROVAL DATE APPROVED CHK. DES. REV. DATE REVISION DESCRIPTION REFERENCE DRAWING No. 1:100 0 1:200 5m 10m 0 5m 10m 15m 20m 1:500 10m 0 20m 30m 40m 50m 1:1000 0 100m 50m 1:20 0 0.5m 1m 1.5m 2m 0 1:25 0.5m 1m 1.5m 1:33 1/3 2.5m 2m 0 1m 2m 3m 0 1:50 1m 2m 3m 4m 5m CAD FILE NAME: P:0CAD000SPEM** MODEL UPDATED: DWG. FILE UPDATED: MANUAL CHANGES MADE: YES NO YES NO YES NO PROJECT MANAGER ENGINEERING MANAGER AREA PROJECTENGINEER REFERENCE DRAWINGS SAFETY SHARE: APPROVAL DATE CONTRACT NO. SAFETY SHARE : BA6CVA1.IGR NOTICE: THIS DRAWING HAS NOT BEEN PUBLISHED AND IS THE SOLE PROPERTY OF FLUOR AND IS LENT TO THE BORROWER FOR THEIR CONFIDENTIAL USE ONLY, AND IN CONSIDERATION OF THE LOAN OF THIS DRAWING, THE BORROWER PROMISES AND AGREES TO RETURN IT UPON REQUEST AND AGREES THAT IT WILL NOT BE REPRODUCED, COPIED LENT OR OTHERWISE DISPOSED OF DIRECTLY OR INDIRECTLY, NOR USED FOR ANY OTHER PURPOSE OTHER THAN WHICH IT IS FURNISHED. NONE Apr 2011 240K-C2- BALL MILL SCREEN O/S BALL MILL SCREEN OVERSIZE CONVEYOR NO. 1, 1306 3300-25J-020 BALL MILL SCREEN O/S BALL MILL SCREEN OVERSIZE CONVEYOR NO. 1, 1376 3300-25J-020 BALL MILL SCREEN U/S PRIMARY CYCLONE FEED SUMP NO. 3, C2-3310-BX-301 1620 3300-25J-032 BALL MILL SCREEN U/S PRIMARY CYCLONE FEED SUMP NO. 3, C2-3310-BX-301 1621 3300-25J-032 C2-3310-CV-064 FEED TONNAGE, 3310-WI-00730 1519 3300-25J-007 TERTIARY CRUSHER SCREEN FEED CONVEYOR NO. 5, C2-3310-CV-064 1518 3300-25J-007 C2-3310-CV-065 FEED TONNAGE, 3310-WI-00830 1630 3300-25J-008 TERTIARY CRUSHER SCREEN FEED CONVEYOR NO. 6, C2-3310-CV-065 1631 3300-25J-008 PROCESS WATER 1636 3900-25J-014 PROCESS WATER 1635 3900-25J-014 PROCESS WATER 1634 3900-25J-014 PROCESS WATER 1633 3900-25J-014 T1 T1 ES ES ES ES AG KM LT ISSUED FOR CLIENT REVIEW 23-Dec-11 B RP ISSUED FOR COMBINED REVIEW 29-Jun-11 A 12/23/2011 K. MUNDY A. GUNSON W. BIE L. TAMELIN 12/21/2011 3:32:25 PM WBS: 3310 B PIPING AND INSTRUMENTATION DIAGRAM BALL MILL FEED 3300-25J-009 SCREENS 301 AND 302 3310 09901 FE + SIZE: 3.6 m X 8.5 m MOTOR: C2-3310-SC-302 BALL MILL FEED SCREEN SIZE: 3.6 m X 8.5 m MOTOR: C2-3310-SC-301 BALL MILL FEED SCREEN FC FC FC FC PRODUCT PRODUCT C2-3310-CV-019 C2-3310-CV-019 ES 3310-WR-1092-C1A-8"-N V V V 3310-WR-1093-C1A-8"-N ES V V V 4" 4" 4" 4" 4"
  • 98.
    D 4 F B A 3 2 1 5 68 E 7 C REV. APPROVED CHK. DES. REV. DATE REVISION DESCRIPTION CLIENT LEAD ENGINEER SCALE DRAWING NUMBER CHECK DESIGN CHECK DRAWING DESIGNED BY DRAWN BY APPROVAL DATE APPROVAL DATE APPROVED CHK. DES. REV. DATE REVISION DESCRIPTION REFERENCE DRAWING No. 1:100 0 1:200 5m 10m 0 5m 10m 15m 20m 1:500 10m 0 20m 30m 40m 50m 1:1000 0 100m 50m 1:20 0 0.5m 1m 1.5m 2m 0 1:25 0.5m 1m 1.5m 1:33 1/3 2.5m 2m 0 1m 2m 3m 0 1:50 1m 2m 3m 4m 5m CAD FILE NAME: P:0CAD000SPEM** MODEL UPDATED: DWG. FILE UPDATED: MANUAL CHANGES MADE: YES NO YES NO YES NO PROJECT MANAGER ENGINEERING MANAGER AREA PROJECTENGINEER REFERENCE DRAWINGS SAFETY SHARE: APPROVAL DATE CONTRACT NO. SAFETY SHARE : BA6CVA1.IGR NOTICE: THIS DRAWING HAS NOT BEEN PUBLISHED AND IS THE SOLE PROPERTY OF FLUOR AND IS LENT TO THE BORROWER FOR THEIR CONFIDENTIAL USE ONLY, AND IN CONSIDERATION OF THE LOAN OF THIS DRAWING, THE BORROWER PROMISES AND AGREES TO RETURN IT UPON REQUEST AND AGREES THAT IT WILL NOT BE REPRODUCED, COPIED LENT OR OTHERWISE DISPOSED OF DIRECTLY OR INDIRECTLY, NOR USED FOR ANY OTHER PURPOSE OTHER THAN WHICH IT IS FURNISHED. NONE Apr 2011 240K-C2- PLANT AIR 1528 3900-25J-022 TERTIARY CRUSHER BALL MILL SCREEN FEEDER, C2-3310-FE-402 1529 3300-25J-011 TERTIARY CRUSHER BALL MILL SCREEN FEED BOX, C2-3310-BX-407 1531 3300-25J-012 WATER CONTROLLER RATIO, 3310-FFFIC-01201 1532 3300-25J-012 AG KM LT ISSUED FOR CLIENT REVIEW 23-Dec-11 B RP ISSUED FOR COMBINED REVIEW 29-Jun-11 A 12/23/2011 K. MUNDY A. GUNSON W. BIE L. TAMELIN 12/21/2011 3:44:17 PM WBS: 3310 B PIPING AND INSTRUMENTATION DIAGRAM BALL MILL FEED 3300-25J-010 SCREEN FEEDER 401 TERTIARY CRUSHER HRGR PRODUCT CONVEYOR NO. 2, C2-3230-CV-028 1548 3200-25J-076 TERTIARY CRUSHER C2-3310-BN-501 1527 3300-25J-013 V M LHS 3310 01005 ZSH 3310 01005 ZSH 3310 01023 A SI 3310 01004 ZSH 3310 01004 ZSH 3310 01037 LAL 3310 01037 LSL 3310 01081 HS 3310 01015 A LAH 3310 01015 A LSH 3310 01016 A LI 3310 01016 LIT 3310 01016 LI 3310 01016 LE 3310 01017 LAL 3310 01017 LSL 3310 01036 A LI 3310 01026 A TI HH, P1 H, P2 3310 01036 LIT 3310 01081 XA 3310 01026 A TE 3310 01030 WIT 3310 01024 ZAH 3310 01030 WE 3310 01023 A ST 3310 01023 A SE 3310 01027 B TE 3310 01036 LE 3310 01003 A SI 3310 01007 B TE 3310 01003 B SE 3310 01006 B TI HH, P1 H, P2 3310 01008 XA P1 3310 01006 B TE 3310 01006 A TI HH, P1 H, P2 3310 01002 HSA 3310 01026 B TI 3310 01006 A TE 3310 01008 B XS 3310 01004 ZSHH LHS 3310 01008 A XS 3310 01005 ZSHH C,D RHS 3310 01005 ZSHH 3310 01003 A ST 3310 00101 HSS 3310 01003 B ST 3310 01003 SDI 3310 01026 B TE 3310 01035 A LAH 3310 01025 ZAH P1 3310 01022 HSA LHS 3310 01081 II 3310 01036 LI HH, P1 H, P2 L, P2 3310 01002 HSS RHS 3310 01003 B SI 3310 01007 B TI HH, P1 H, P2 3310 01004 ZAHH 3310 01003 A SE 3310 01005 ZAHH 3310 01007 A TI HH, P1 H, P2 3310 01007 A TE 3310 01021 HSA 3310 01035 A LSH 3310 01021 HSS 3310 01025 ZSHH A,B 3310 01022 HSS RHS 3310 01025 ZSH 3310 01024 ZSHH 3310 01024 ZSH LHS A,B 3310 01004 ZSHH LHS 3310 00101 HSA 3310 01027 A TI HH, P1 H, P2 3310 01027 A TE 3310 01027 B TI 3310 01030 WI P1 A,B P1 A-B RHS TEAR A,B C,D RHS A,B P1 LHS A,B P1 RHS RHS H, P1 LHS P1 A-B LHS A,B P1 P1 A,B LHS A,B H, P1 RHS HH, P1 H, P2 HH, P1 H, P2 RHS P2 A,B A,B RHS A,B FAULT P1 ST/SP HH, P1 H, P2 L, P2 P1 A,B C2-3310-DC-176 C2-3310-ST-402 C2-3310-ST-401 C2-3310-ST-403 C2-3310-FA-176 C2-3310-ST-337 C2-3310-SL-411 C2-3310-FE-401 C2-3310-CV-066 3310-AP-1306-C1A-2"-N C2-3310-BN-401 SIZE: C2-3310-DC-176 BALL MILL FEED BIN DUST COLLECTOR SIZE: 8000 t C2-3310-BN-401 BALL MILL FEED SURGE BIN SIZE: C2-3310-ST-401 BALL MILL SCREEN FEEDER SKIRT SIZE: C2-3310-ST-402 BALL MILL SCREEN FEEDER SKIRT SIZE: C2-3310-ST-403 BALL MILL SCREEN FEED CHUTE SIZE: C2-3310-SL-411 BALL MILL SCREEN FEEDER BELT SCALE SIZE: C2-3310-ST-337 BALL MILL SCREEN FEED CONVEYOR HEAD CHUTE TO ATMOSPHERE 3310 01023 B SE 3310 01023 B ST 3310 01023 B SI 3310 01023 SDI H, P1 3310 01035 A LE 3310 01035 B LE 3310 01035 B LSH 3310 01035 B LAH H, P1 3310 01015 A LE 3310 01015 B LE 3310 01015 B LSH 3310 01015 B LAH P1 BIN CONTINUED ON PID 3310-25J-004 T5 V V ES V ES V ES ES ES V V V V ES V V V ES V ES ES ES ES V LHS P2 A,B V RHS LHS LHS A,B LHS RHS LHS RHS 3310 01030 SE C2-3310-ST-357 C2-3310-ST-431 C2-3310-ST-432 SIZE: C2-3310-ST-431 BALL MILL FEED BIN INSERT SIZE: C2-3310-ST-432 BALL MILL FEED BIN INSERT SIZE: 2134 mm X 42 m L MOTOR: 112.00 kW C2-3310-CV-066 BALL MILL SCREEN FEED CONVEYOR NO. 7 SIZE: MOTOR: C2-3310-FE-401 BALL MILL SCREEN FEEDER SIZE: MOTOR: C2-3310-FA-176 BALL MILL FEED BIN DUST COLLECTOR FAN SIZE: C2-3310-ST-357 BALL MILL SCREEN FEED CONVEYOR SKIRT PRODUCT M 3310 01083 HS 3310 01083 XA 3310 01083 II FAULT ST/SP C2-3310-DC-177 C2-3310-FA-177 TO ATMOSPHERE SIZE: C2-3310-DC-177 BALL MILL FEED BIN DUST COLLECTOR SIZE: MOTOR: C2-3310-FA-177 BALL MILL FEED BIN DUST COLLECTOR FAN V V V V V V A,B A,B 3310 01005 ZAH 3310 01004 ZAH P2 P2 3310 01004 ZAHH 3310 01005 ZAHH RHS C, D P1 LHS C, D P1 3310 01005 ZAH 3310 01104 ZAH P2 P2 V C,D V C,D V V V V A,B A,B 3310 01025 ZAHH 3310 01024 ZAHH P1 PRODUCT PRODUCT 3310-AP-1307-C1A-2"-N PRODUCT 3310 01092 XA 3310 01092 HS J/SP 3310 01092 II FAULT 3310 01031 XA + 3310 01041 VE 3310 01041 VT 3310 01043 TE 3310 01042 LE 3310 01042 LSL 3310 01042 LA 3310 01041 VI ES V V V V V V H, P2 HH, P1 3310 01043 TI L, P2 H, P2 HH, P1 GEAR REDUCER T4 3310 01082 II 3310 01082 H TI BRG REAR H,P2 HH,P1 3310 01082 G TI BRG FRONT H,P2 HH,P1 3310 01082 G TE 3310 01082 XA 3310 01082 H TE V V 3310 01082 HS 3310 01011 XA + J/SP FAULT AFD VENDOR VENDOR ES 3310 01019 PDAH 3310 01039 PDAH NOTE: 1. THE BALL MILL SCREEN FEEDER AND BALL MILL SCREEN FEED CONVEYOR DUST SUPPRESSION SYSTEM WILL BE FURTHER DEFINED IN REVISIONS. SPRAY WATER WILL BE SUPPLIED BY THE PROCESS WATER SYSTEM.
  • 99.
    D 4 F B A 3 2 1 5 68 E 7 C REV. APPROVED CHK. DES. REV. DATE REVISION DESCRIPTION CLIENT LEAD ENGINEER SCALE DRAWING NUMBER CHECK DESIGN CHECK DRAWING DESIGNED BY DRAWN BY APPROVAL DATE APPROVAL DATE APPROVED CHK. DES. REV. DATE REVISION DESCRIPTION REFERENCE DRAWING No. 1:100 0 1:200 5m 10m 0 5m 10m 15m 20m 1:500 10m 0 20m 30m 40m 50m 1:1000 0 100m 50m 1:20 0 0.5m 1m 1.5m 2m 0 1:25 0.5m 1m 1.5m 1:33 1/3 2.5m 2m 0 1m 2m 3m 0 1:50 1m 2m 3m 4m 5m CAD FILE NAME: P:0CAD000SPEM** MODEL UPDATED: DWG. FILE UPDATED: MANUAL CHANGES MADE: YES NO YES NO YES NO PROJECT MANAGER ENGINEERING MANAGER AREA PROJECTENGINEER REFERENCE DRAWINGS SAFETY SHARE: APPROVAL DATE CONTRACT NO. SAFETY SHARE : BA6CVA1.IGR NOTICE: THIS DRAWING HAS NOT BEEN PUBLISHED AND IS THE SOLE PROPERTY OF FLUOR AND IS LENT TO THE BORROWER FOR THEIR CONFIDENTIAL USE ONLY, AND IN CONSIDERATION OF THE LOAN OF THIS DRAWING, THE BORROWER PROMISES AND AGREES TO RETURN IT UPON REQUEST AND AGREES THAT IT WILL NOT BE REPRODUCED, COPIED LENT OR OTHERWISE DISPOSED OF DIRECTLY OR INDIRECTLY, NOR USED FOR ANY OTHER PURPOSE OTHER THAN WHICH IT IS FURNISHED. NONE Apr 2011 240K-C2- 3310 01123 A SI 3310 01125 ZSHH A,B 3310 01103 SDI 3310 01126 A TI 3310 01103 B ST 3310 01121 HSS HH, P1 H, P2 3310 01102 HSA 3310 01122 HSS 3310 01106 A TI RHS C2-3310-ST-404 HH, P1 H, P2 RHS A,B A,B 3310 01103 B SE 3310 01127 A TI 3310 01107 B TE HH, P1 H, P2 HH, P1 H, P2 3310 01115 B LSH 3310 01125 ZSH LHS 3310 01101 HSA 3310 01115 B LAH RHS 3310 01127 A TE 3310 01130 WIT LHS P1 A,B C2-3310-ST-338 3310 01126 A TE C2-3310-SL-412 RHS 3310 01124 ZAHH A,B P1 3310 01130 WE TEAR LHS 3310 01108 A XS 3310 01123 A SE SIZE: C2-3310-ST-404 BALL MILL SCREEN FEED CHUTE 3310 01104 ZSHH 3310 01106 B TI 3310 01106 A TE LHS HH, P1 H, P2 RHS SIZE: C2-3310-SL-412 BALL MILL SCREEN FEEDER BELT SCALE A,B C,D SIZE: C2-3310-ST-338 BALL MILL SCREEN FEED CONVEYOR HEAD CHUTE 3310 01124 ZSHH 3310 01103 B SI LHS 3310 01127 B TI 3310 01122 HSA C2-3310-FE-402 3310 01124 ZSH 3310 01103 A SE A,B A,B RHS A,B A,B 3310 01103 A SI 3310 01106 B TE RHS 3310 01103 A ST 3310 01127 B TE A,B P1 HH, P1 H, P2 3310 01125 ZAHH 3310 01101 HSS LHS, A,B 3310 01107 A TI 3310 01126 B TI HH, P1 H, P2 3310 01123 A ST 3310 01105 ZSH 3310 01102 HSS 3310 01107 A TE C,D RHS HH, P1 H, P2 3310 01121 HSA 3310 01126 B TE A-B 3310 01107 B TI LHS 3310 01104 ZSH A,B A-B LHS 3310 01105 ZSHH 3310 01130 WI P1 P1 3310 01130 SE P1 3310 01108 B XS LHS RHS 3310 01108 XA P1 3310 01104 ZSH 3310 01105 ZSH C2-3310-CV-067 3310 01115 B LE 3310 01115 A LSH 3310 01115 A LAH P1 3310 01115 A LE 3310 01135 B LSH 3310 01135 B LAH P1 3310 01135 B LE 3310 01135 A LSH 3310 01135 A LAH P1 3310 01135 A LE 3310 01123 B SI 3310 01123 B SE 3310 01123 B ST 3310 01123 SDI H, P1 TERTIARY CRUSHER BALL MILL FEED SURGE BIN, C2-3310-BN-401 1529 3300-25J-010 TERTIARY CRUSHER BALL MILL SCREEN FEED BOX, C2-3310-BX-408 1683 3300-25J-012 WATER RATIO CONTROLLER, 3310-FFFIC-01221 1684 3300-25J-012 T5 ES V V V V ES ES ES V V ES V ES ES V V V AG KM LT ISSUED FOR CLIENT REVIEW 23-Dec-11 B RP ISSUED FOR COMBINED REVIEW 29-Jun-11 A 12/23/2011 K. MUNDY A. GUNSON W. BIE L. TAMELIN 12/23/2011 9:48:13 AM WBS: 3310 B PIPING AND INSTRUMENTATION DIAGRAM BALL MILL FEED 3300-25J-011 SCREEN FEEDER 402 3310 01105 ZSHH 3310 01104 ZSHH V V V V RHS LHS RHS LHS A,B LHS RHS LHS RHS SIZE: MOTOR: C2-3310-FE-402 BALL MILL SCREEN FEEDER SIZE: 2134 mm x 35 m L MOTOR: 112.00 kW C2-3310-CV-067 BALL MILL SCREEN FEED CONVEYOR NO. 8 C2-3310-ST-358 SIZE: C2-3310-ST-358 BALL MILL SCREEN FEED CONVEYOR SKIRT V V 3310 01124 ZAH 3310 01125 ZAH P1 P2 P2 P1 V V V V V V V V A,B A,B A,B V C,D C,D 3310 01104 ZAHH RHS A,B 3310 01105 ZAHH LHS, A,B 3310 01104 ZAH 3310 01105 ZAH P1 P2 P2 P1 3310 01104 ZAHH RHS C,D 3310 01105 ZAHH LHS, C,D 3310 01104 ZAH 3310 01105 ZAH P1 P2 P2 P1 PRODUCT PRODUCT 3310 01182 II 3310 01182 H TI BRG REAR H,P2 HH,P1 3310 01182 G TI BRG FRONT H,P2 HH,P1 3310 01182 G TE 3310 01182 XA 3310 01182 H TE V V 3310 01182 HS 3310 01111 XA + J/SP FAULT AFD ES 3310 01192 XA 3310 01192 HS J/SP 3310 01192 II FAULT 3310 01131 XA + 3310 01141 VE 3310 01141 VT 3310 01143 TE 3310 01142 LE 3310 01142 LSL 3310 01142 LA 3310 01141 VI ES V V V V V V H, P2 HH, P1 3310 01143 TI L, P2 H, P2 HH, P1 GEAR REDUCER T4 NOTE: 1. THE BALL MILL SCREEN FEEDER AND BALL MILL SCREEN FEED CONVEYOR DUST SUPPRESSION SYSTEM WILL BE FURTHER DEFINED IN REVISIONS. SPRAY WATER WILL BE SUPPLIED BY THE PROCESS WATER SYSTEM.
  • 100.
    D 4 F B A 3 2 1 5 68 E 7 C REV. APPROVED CHK. DES. REV. DATE REVISION DESCRIPTION CLIENT LEAD ENGINEER SCALE DRAWING NUMBER CHECK DESIGN CHECK DRAWING DESIGNED BY DRAWN BY APPROVAL DATE APPROVAL DATE APPROVED CHK. DES. REV. DATE REVISION DESCRIPTION REFERENCE DRAWING No. 1:100 0 1:200 5m 10m 0 5m 10m 15m 20m 1:500 10m 0 20m 30m 40m 50m 1:1000 0 100m 50m 1:20 0 0.5m 1m 1.5m 2m 0 1:25 0.5m 1m 1.5m 1:33 1/3 2.5m 2m 0 1m 2m 3m 0 1:50 1m 2m 3m 4m 5m CAD FILE NAME: P:0CAD000SPEM** MODEL UPDATED: DWG. FILE UPDATED: MANUAL CHANGES MADE: YES NO YES NO YES NO PROJECT MANAGER ENGINEERING MANAGER AREA PROJECTENGINEER REFERENCE DRAWINGS SAFETY SHARE: APPROVAL DATE CONTRACT NO. SAFETY SHARE : BA6CVA1.IGR NOTICE: THIS DRAWING HAS NOT BEEN PUBLISHED AND IS THE SOLE PROPERTY OF FLUOR AND IS LENT TO THE BORROWER FOR THEIR CONFIDENTIAL USE ONLY, AND IN CONSIDERATION OF THE LOAN OF THIS DRAWING, THE BORROWER PROMISES AND AGREES TO RETURN IT UPON REQUEST AND AGREES THAT IT WILL NOT BE REPRODUCED, COPIED LENT OR OTHERWISE DISPOSED OF DIRECTLY OR INDIRECTLY, NOR USED FOR ANY OTHER PURPOSE OTHER THAN WHICH IT IS FURNISHED. NONE Apr 2011 240K-C2- 3310 01221 FIC 3310 01202 FE + 3310 01221 FIT 10" C2-3310-SC-401 M M C2-3310-ST-406 C2-3310-ST-408 C2-3310-SC-402 C2-3310-BX-408 3310 01201 FV + C2-3310-BX-407 4" 4" 24"x20" 10" 4" 3310 01201 FE + M 24"x10" 10" 24"x10" 24"x10" 24"x10" 3310 01222 FV + P2 3310 01222 FE + 24"x20" J/SP 3310 01221 FV + M H, P1 10" FAULT FAULT J/SP P1 3310 01221 FE + P2 3310 01281 XA 3310 01204 LAH 3310 01202 FIC 3310 01202 FIT C2-3310-ST-407 3310 01203 VSL 3310 01203 VE 3310 01203 VT 3310 01201 FIC 3310 01201 FIT 3310 01203 VAL 3310 01281 II 3310 01202 FV + 3310 01204 LSH 3310 01281 HS 3310 01201 FFFIC 3310 01221 FFFIC 3310 01291 HS 3310 01291 XA 3310 01291 II 3310 01224 LAH C2-3310-ST-405 3310 01224 LSH 3310 01223 VAL 3310 01223 VSL 3310 01223 VT 3310 01223 VE 3310 01222 FIC 3310 01222 FIT BALL MILL SCREEN O/S BALL MILL SCREEN OVERSIZE CONVEYOR NO. 2, 1466 3300-25J-021 BALL MILL SCREEN O/S BALL MILL SCREEN OVERSIZE CONVEYOR NO. 2, 1467 3300-25J-021 TERTIARY CRUSHER SCREEN FEED CONVEYOR NO. 7, C2-3310-CV-066 1531 3300-25J-010 C2-3310-CV-066 FEED TONNAGE, 3310-WI-01030 1532 3300-25J-010 BALL MILL SCREEN U/S PRIMARY CYCLONE FEED SUMP NO. 4, C2-3310-BX-401 1653 3300-25J-036 BALL MILL SCREEN U/S PRIMARY CYCLONE FEED SUMP NO. 4, C2-3310-BX-401 1652 3300-25J-036 PROCESS WATER 1679 3900-25J-014 PROCESS WATER 1680 3900-25J-014 PROCESS WATER 1681 3900-25J-014 PROCESS WATER 1682 3900-25J-014 TERTIARY CRUSHER SCREEN FEED CONVEYOR NO. 8, C2-3310-CV-067 1683 3300-25J-011 C2-3310-CV-067 FEED TONNAGE, 3310-WI-01130 1684 3300-25J-011 T1 T1 3310-WR-1087-C1A-24"-N 3310-WR-1414-C1A-2"-N SIZE: C2-3310-ST-405 BALL MILL SCREEN OVERSIZE CHUTE SIZE: C2-3310-ST-408 BALL MILL FEED SCREEN UNDERSIZE CHUTE SIZE: C2-3310-BX-407 BALL MILL SCREEN FEED BOX 3310-WR-1418-C1A-2"-N 3310-WR-1417-C1A-2"-N 3310-WR-1084-C1A-24"-N 3310-WR-1411-C1A-8"-N ES SIZE: C2-3310-ST-407 BALL MILL FEED SCREEN UNDERSIZE CHUTE 3310-WR-1423-C1A-8"-N 3310-WR-1429-C1A-2"-N 3310-WR-1431-C1A-2"-N 3310-WR-1413-C1A-2"-N ES 3310-WR-1408-C1A-20"-N ES 3310-WR-1426-C1A-2"-N 3310-WR-1419-C1A-2"-N 3310-WR-1430-C1A-2"-N 3310-WR-1085-C1A-8"-N 3310-WR-1427-C1A-2"-N 3310-WR-1086-C1A-8"-N 3310-WR-1428-C1A-2"-N SIZE: C2-3310-ST-406 BALL MILL SCREEN OVERSIZE CHUTE SIZE: C2-3310-BX-408 BALL MILL SCREEN FEED BOX 3310-WR-1416-C1A-2"-N ES 3310-WR-1425-C1A-2"-N 3310-WR-1420-C1A-20"-N 3310-WR-1415-C1A-2"-N AG KM LT ISSUED FOR CLIENT REVIEW 23-Dec-11 B RP ISSUED FOR COMBINED REVIEW 29-Jun-11 A 12/23/2011 K. MUNDY A. GUNSON W. BIE L. TAMELIN 12/21/2011 4:12:23 PM WBS: 3310 B PIPING AND INSTRUMENTATION DIAGRAM BALL MILL FEED 3300-25J-012 SCREENS 401 AND 402 SIZE: 3.6 m X 8.5 m MOTOR: C2-3310-SC-402 BALL MILL FEED SCREEN SIZE: 3.6 m X 8.5 m MOTOR: C2-3310-SC-401 BALL MILL FEED SCREEN FC FC FC FC PRODUCT PRODUCT C2-3310-CV-029 C2-3310-CV-029 ES 3310-WR-1085-C1A-8"-N V V V 3310-WR-1086-C1A-8"-N ES V V V 4" 4" 4" 4" 4"
  • 101.
    D 4 F B A 3 2 1 5 68 E 7 C REV. APPROVED CHK. DES. REV. DATE REVISION DESCRIPTION CLIENT LEAD ENGINEER SCALE DRAWING NUMBER CHECK DESIGN CHECK DRAWING DESIGNED BY DRAWN BY APPROVAL DATE APPROVAL DATE APPROVED CHK. DES. REV. DATE REVISION DESCRIPTION REFERENCE DRAWING No. 1:100 0 1:200 5m 10m 0 5m 10m 15m 20m 1:500 10m 0 20m 30m 40m 50m 1:1000 0 100m 50m 1:20 0 0.5m 1m 1.5m 2m 0 1:25 0.5m 1m 1.5m 1:33 1/3 2.5m 2m 0 1m 2m 3m 0 1:50 1m 2m 3m 4m 5m CAD FILE NAME: P:0CAD000SPEM** MODEL UPDATED: DWG. FILE UPDATED: MANUAL CHANGES MADE: YES NO YES NO YES NO PROJECT MANAGER ENGINEERING MANAGER AREA PROJECTENGINEER REFERENCE DRAWINGS SAFETY SHARE: APPROVAL DATE CONTRACT NO. SAFETY SHARE : BA6CVA1.IGR NOTICE: THIS DRAWING HAS NOT BEEN PUBLISHED AND IS THE SOLE PROPERTY OF FLUOR AND IS LENT TO THE BORROWER FOR THEIR CONFIDENTIAL USE ONLY, AND IN CONSIDERATION OF THE LOAN OF THIS DRAWING, THE BORROWER PROMISES AND AGREES TO RETURN IT UPON REQUEST AND AGREES THAT IT WILL NOT BE REPRODUCED, COPIED LENT OR OTHERWISE DISPOSED OF DIRECTLY OR INDIRECTLY, NOR USED FOR ANY OTHER PURPOSE OTHER THAN WHICH IT IS FURNISHED. NONE Apr 2011 240K-C2- PLANT AIR 1550 3900-25J-022 TERTIARY CRUSHER BALL MILL SCREEN FEEDER, C2-3310-FE-502 1552 3300-25J-014 TERTIARY CRUSHER BALL MILL SCREEN FEED BOX, C2-3310-BX-507 1554 3300-25J-015 WATER RATIO CONTROLLER, 3310-FFFIC-01501 1555 3300-25J-015 AG KM LT ISSUED FOR CLIENT REVIEW 23-Dec-11 B RP ISSUED FOR COMBINED REVIEW 29-Jun-11 A 12/23/2011 K. MUNDY A. GUNSON W. BIE L. TAMELIN 12/23/2011 9:51:16 AM WBS: 3310 B PIPING AND INSTRUMENTATION DIAGRAM BALL MILL FEED 3300-25J-013 SCREEN FEEDER 501 TERTIARY CRUSHER C2-3310-BN-601 1567 3300-25J-016 TERTIARY CRUSHER HRGR PRODUCT CONVEYOR NO. 2, C2-3230-CV-028 1527 3300-25J-010 V M LHS 3310 00105 ZSH 3310 01305 ZSH 3310 01323 A SI 3310 01304 ZSH 3310 01304 ZSH 3310 01337 LAL 3310 01337 LSL 3310 01381 HS 3310 01315 A LAH 3310 01315 A LSH 3310 01316 A LI 3310 01316 LIT 3310 01316 LI 3310 01316 LE 3310 01317 LAL 3310 01317 LSL 3310 01336 A LI 3310 01326 A TI HH, P1 H, P2 3310 01336 LIT 3310 01381 XA 3310 01326 A TE 3310 01330 WIT 3310 01324 ZAH 3310 01330 WE 3310 01323 A ST 3310 01323 A SE 3310 01327 B TE 3310 01336 LE 3310 01303 A SI 3310 01307 B TE 3310 01303 B SE 3310 01306 B TI HH, P1 H, P2 3310 01308 XA P1 3310 01306 B TE 3310 01306 A TI HH, P1 H, P2 3310 01302 HSA 3310 01326 B TI 3310 01306 A TE 3310 01308 B XS 3310 01304 ZSHH LHS 3310 01308 A XS 3310 01305 ZSHH C,D RHS 3310 01305 ZSHH 3310 01303 A ST 3310 01301 HSS 3310 01303 B ST 3310 01303 SDI 3310 01326 B TE 3310 01335 A LAH 3310 01325 ZAH P1 3310 01322 HSA LHS 3310 01381 II 3310 01336 LI HH, P1 H, P2 L, P2 3310 01302 HSS RHS 3310 01303 B SI 3310 01307 B TI HH, P1 H, P2 3310 01304 ZAHH 3310 01303 A SE 3310 01305 ZAHH 3310 01307 A TI HH, P1 H, P2 3310 01307 A TE 3310 01321 HSA 3310 01335 A LSH 3310 01321 HSS 3310 01325 ZSHH A,B 3310 01322 HSS RHS 3310 01325 ZSH 3310 01324 ZSHH 3310 01324 ZSH LHS A,B 3310 01304 ZSHH LHS 3310 01301 HSA 3310 01327 A TI HH, P1 H, P2 3310 01327 A TE 3310 01327 B TI 3310 01330 WI P1 A,B P1 A-B RHS TEAR A,B C,D RHS A,B P1 LHS A,B P1 RHS RHS H, P1 LHS P1 A-B LHS A,B P1 P1 A,B LHS A,B P1 RHS HH, P1 H, P2 HH, P1 H, P2 RHS P2 A,B A,B RHS A,B FAULT P1 J/SP HH, P1 H, P2 L, P2 P1 A,B C2-3310-DC-401 C2-3310-ST-502 C2-3310-ST-501 C2-3310-ST-503 C2-3310-FA-401 C2-3310-ST-339 C2-3310-SL-511 C2-3310-FE-501 C2-3310-CV-068 3310-AP-1308-C1A-2"-N C2-3310-BN-501 SIZE: C2-3310-DC-401 BALL MILL FEED BIN DUST COLLECTOR (DRY) SIZE: 8000 t C2-3310-BN-501 BALL MILL FEED SURGE BIN SIZE: C2-3310-ST-501 BALL MILL SCREEN FEEDER SKIRT SIZE: C2-3310-ST-502 BALL MILL SCREEN FEEDER SKIRT SIZE: C2-3310-ST-503 BALL MILL SCREEN FEED CHUTE SIZE: C2-3310-SL-511 BALL MILL SCREEN FEEDER BELT SCALE SIZE: C2-3310-ST-339 BALL MILL SCREEN FEED CONVEYOR HEAD CHUTE TO ATMOSPHERE 3310 01323 B SE 3310 01323 B ST 3310 01323 B SI 3310 01323 SDI H, P1 3310 01335 A LE 3310 01335 B LE 3310 01335 B LSH 3310 01335 B LAH P1 3310 01315 A LE 3310 01315 B LE 3310 01315 B LSH 3310 01315 B LAH P1 BIN CONTINUED ON PID 3310-25J-004 T5 V V ES V ES V ES ES ES V V V V ES V V V ES V ES ES ES ES V LHS P2 A,B V RHS LHS LHS A,B LHS RHS LHS RHS 3310 01330 SE C2-3310-ST-359 C2-3310-ST-433 C2-3310-ST-434 SIZE: C2-3310-ST-433 BALL MILL FEED BIN INSERT SIZE: C2-3310-ST-434 BALL MILL FEED BIN INSERT SIZE: 2134 mm X 42 m L MOTOR: 112.00 kW C2-3310-CV-068 BALL MILL SCREEN FEED CONVEYOR NO. 9 SIZE: MOTOR: C2-3310-FE-501 BALL MILL SCREEN FEEDER SIZE: MOTOR: C2-3310-FA-401 BALL MILL FEED BIN DUST COLLECTOR FAN SIZE: C2-3310-ST-359 BALL MILL SCREEN FEED CONVEYOR SKIRT PRODUCT M 3310 01383 HS 3310 01383 XA 3310 01383 II FAULT J/SP C2-3310-DC-175 C2-3310-FA-175 TO ATMOSPHERE SIZE: C2-3310-DC-175 BALL MILL FEED BIN DUST COLLECTOR (DRY) SIZE: MOTOR: C2-3310-FA-175 BALL MILL FEED BIN DUST COLLECTOR FAN V V V V V V A,B A,B 3310 01305 ZAH 3310 01304 ZAH P2 P2 3310 01304 ZAHH 3310 01305 ZAHH RHS C, D P1 LHS C, D P1 3310 01305 ZAH 3310 01304 ZAH P2 P2 V C,D V C,D V V V V A,B A,B 3310 01325 ZAHH 3310 01324 ZAHH P1 PRODUCT PRODUCT 3310-AP-1309-C1A-2"-N PRODUCT VENDOR VENDOR 3310 01382 II 3310 01382 H TI BRG REAR H,P2 HH,P1 3310 01382 G TI BRG FRONT H,P2 HH,P1 3310 01382 G TE 3310 01382 XA 3310 01382 H TE V V 3310 01382 HS 3310 01311 XA + J/SP FAULT AFD ES 3310 01392 XA 3310 01392 HS J/SP 3310 01392 II FAULT 3310 01331 XA + 3310 01341 VE 3310 01341 VT 3310 01343 TE 3310 01342 LE 3310 01342 LSL 3310 01342 LA 3310 01341 VI ES V V V V V V H, P2 HH, P1 3310 01343 TI L, P2 H, P2 HH, P1 GEAR REDUCER T4 3310 01319 PDAH 3310 01339 PDAH NOTE: 1. THE BALL MILL SCREEN FEEDER AND BALL MILL SCREEN FEED CONVEYOR DUST SUPPRESSION SYSTEM WILL BE FURTHER DEFINED IN REVISIONS. SPRAY WATER WILL BE SUPPLIED BY THE PROCESS WATER SYSTEM.
  • 102.
    T5 RHS LHS LHS 3310 01404 ZSHH 3310 01405 ZSHH 3310 01415 B LSH 3310 01423 SDI H,P1 3310 01415 B LE 3310 01407 B TE 3310 01421 HSA LHS 3310 01430 WE 3310 01405 ZAHH 3310 01430 SE 3310 01435 B LSH 3310 01423 B ST 3310 01435 B LE 3310 01407 A TI 3310 01401 HSA 3310 01404 ZSH LHS 3310 01415 A LSH 3310 01435 A LAH P1 3310 01423 A SI 3310 01427 A TI HH, P1 H, P2 3310 01408 A XS TEAR 3310 01406 A TE 3310 01426 B TE 3310 01423 B SI 3310 01435 B LAH P1 3310 01408 B XS LHS 3310 01405 ZSHH 3310 01422 HSS RHS 3310 01425 ZSHH A,B 3310 01401 HSS 3310 01406 B TI HH, P1 H, P2 3310 01403 A SI 3310 01427 B TI 3310 01423 A SE 3310 01426 A TI HH, P1 H, P2 3310 01415 A LE 3310 01403 SDI 3310 01403 A SE 3310 01404 ZAHH LHS A,B 3310 01423 B SE 3310 01415 A LAH P1 3310 01407 A TE 3310 01403 A ST 3310 01424 ZSH LHS A,B 3310 01430 WI 3310 01425 ZSH RHS 3310 01423 A ST 3310 01408 XA P1 3310 01403 B SI 3310 01402 HSA 3310 01427 A TE 3310 01426 B TI HH, P1 H, P2 3310 01404 ZSHH LHS 3310 01406 B TE RHS 3310 01405 ZSH 3310 01405 ZSH 3310 01426 A TE 3310 01430 WIT 3310 01422 HSA RHS A,B 3310 01435 A LSH 3310 01404 ZSH 3310 01421 HSS 3310 01424 ZSHH 3310 01406 A TI HH, P1 H, P2 3310 01402 HSS RHS 3310 01415 B LAH P1 3310 01403 B ST 3310 01403 B SE 3310 01407 B TI 3310 01435 A LE 3310 01427 B TE WATER RATIO CONTROLLER, 3310-FFFIC-01521 1646 3300-25J-015 TERTIARY CRUSHER BALL MILL FEED SURGE BIN, C2-3310-BN-501 1552 3300-25J-013 TERTIARY CRUSHER BALL MILL SCREEN FEED BOX, C2-3310-BX-508 1645 3300-25J-015 A,B A,B P1 C,D P1 RHS H, P1 A,B HH, P1 H, P2 RHS RHS A,B A,B A,B P1 LHS RHS A,B RHS A,B A,B HH, P1 H, P2 LHS A,B LHS HH, P1 H, P2 A,B P1 LHS RHS SIZE: C2-3310-ST-340 BALL MILL SCREEN FEED CONVEYOR HEAD CHUTE C2-3310-ST-340 C2-3310-FE-502 SIZE: C2-3310-ST-504 BALL MILL SCREEN FEED CHUTE C2-3310-ST-504 C2-3310-SL-512 SIZE: C2-3310-SL-512 BALL MILL SCREEN FEEDER BELT SCALE C2-3310-CV-069 ES V ES V V V V ES V ES ES ES V V V ES ES ES V AG KM LT ISSUED FOR CLIENT REVIEW 23-Dec-11 B RP ISSUED FOR COMBINED REVIEW 29-Jun-11 A 12/23/2011 K. MUNDY A. GUNSON W. BIE L. TAMELIN 12/21/2011 4:28:33 PM WBS: 3310 B PIPING AND INSTRUMENTATION DIAGRAM BALL MILL FEED 3300-25J-014 SCREEN FEEDER 502 V V V V D 4 F B A 3 2 1 5 6 8 E 7 C REV. APPROVED CHK. DES. REV. DATE REVISION DESCRIPTION CLIENT LEAD ENGINEER SCALE DRAWING NUMBER CHECK DESIGN CHECK DRAWING DESIGNED BY DRAWN BY APPROVAL DATE APPROVAL DATE APPROVED CHK. DES. REV. DATE REVISION DESCRIPTION REFERENCE DRAWING No. 1:100 0 1:200 5m 10m 0 5m 10m 15m 20m 1:500 10m 0 20m 30m 40m 50m 1:1000 0 100m 50m 1:20 0 0.5m 1m 1.5m 2m 0 1:25 0.5m 1m 1.5m 1:33 1/3 2.5m 2m 0 1m 2m 3m 0 1:50 1m 2m 3m 4m 5m CAD FILE NAME: P:0CAD000SPEM** MODEL UPDATED: DWG. FILE UPDATED: MANUAL CHANGES MADE: YES NO YES NO YES NO PROJECT MANAGER ENGINEERING MANAGER AREA PROJECTENGINEER REFERENCE DRAWINGS SAFETY SHARE: APPROVAL DATE CONTRACT NO. SAFETY SHARE : BA6CVA1.IGR NOTICE: THIS DRAWING HAS NOT BEEN PUBLISHED AND IS THE SOLE PROPERTY OF FLUOR AND IS LENT TO THE BORROWER FOR THEIR CONFIDENTIAL USE ONLY, AND IN CONSIDERATION OF THE LOAN OF THIS DRAWING, THE BORROWER PROMISES AND AGREES TO RETURN IT UPON REQUEST AND AGREES THAT IT WILL NOT BE REPRODUCED, COPIED LENT OR OTHERWISE DISPOSED OF DIRECTLY OR INDIRECTLY, NOR USED FOR ANY OTHER PURPOSE OTHER THAN WHICH IT IS FURNISHED. NONE Apr 2011 240K-C2- RHS LHS SIZE: MOTOR: C2-3310-FE-502 BALL MILL SCREEN FEEDER SIZE: 2134 mm x 35 m L MOTOR: 112.00 kW C2-3310-CV-069 BALL MIL SCREEN FEED CONVEYOR NO. 10 C2-3310-ST-360 SIZE: C2-3310-ST-360 BALL MILL SCREEN FEED CONVEYOR SKIRT V V V V A,B A,B A,B V V V 3310 01405 ZAH 3310 01404 ZAH P2 P2 P1 P1 3310 01405 ZAHH 3310 01404 ZAHH LHS C,D RHS C,D 3310 01405 ZAH 3310 01404 ZAH P2 P2 P1 P1 C,D C,D C,D V V V V V V 3310 01425 ZAHH 3310 01424 ZAHH LHS A,B RHS A,B 3310 01425 ZAH 3310 01424 ZAH P2 P2 P1 P1 PRODUCT PRODUCT A,B 3310 01482 II 3310 01482 H TI BRG REAR H,P2 HH,P1 3310 01482 G TI BRG FRONT H,P2 HH,P1 3310 01482 G TE 3310 01482 XA 3310 01482 H TE V V 3310 01482 HS 3310 01411 XA + J/SP FAULT AFD GEAR REDUCER 3310 01492 XA 3310 01492 HS J/SP 3310 01492 II FAULT 3310 01431 XA + 3310 01441 VE 3310 01441 VT 3310 01443 TE 3310 01442 LE 3310 01442 LSL 3310 01442 LA 3310 01441 VI ES V V V V V V H, P2 HH, P1 3310 01443 TI L, P2 H, P2 HH, P1 T4 NOTES: 1. THE BALL MILL SCREEN FEEDER AND BALL MILL SCREEN FEED CONVEYOR DUST SUPPRESSION SYSTEM WILL BE FURTHER DEFINED IN REVISIONS. SPRAY WATER WILL BE SUPPLIED BY THE PROCESS WATER SYSTEM.
  • 103.
    T1 T1 3310 01524 LSH 3310 01504 LAH 3310 01503 VAL 3310 01591 XA 3310 01503 VE 3310 01523 VE 3310 01524 LAH M M M 3310 01521 FFFIC 3310 01501 FIC 3310 01523 VSL 3310 01523 VAL 3310 01581 II 3310 01502 FIC 3310 01522 FIC 3310 01504 LSH 3310 01591 II 3310 01501 FIT 3310 01521 FIC 3310 01581 HS 3310 01501 FFFIC 3310 01522 FIT M 3310 01502 FIT 3310 01503 VSL 3310 01521 FIT 3310 01591 HS 3310 01523 VT 3310 01503 VT 3310 01581 XA PROCESS WATER 1649 3900-25J-014 BALL MILLSCREEN O/S BALL MILL SCREEN OVERSIZE CONVEYOR NO. 2, 1464 3300-25J-021 PROCESS WATER 1651 3900-25J-014 C2-3310-CV-069 FEED TONNAGE, 3310-WI-01430 1646 3300-25J-014 PROCESS WATER 1648 3900-25J-014 TERTIARY CRUSHER SCREEN FEED CONVEYOR NO. 9, C2-3310-CV-068 1554 3300-25J-013 BALL MILL SCREEN U/S PRIMARY CYCLONE FEED SUMP NO. 5, C2-3310-BX-501 1659 3300-25J-042 BALL MILL SCREEN U/S PRIMARY CYCLONE FEED SUMP NO. 5, C2-3310-BX-501 1656 3300-25J-042 C2-3310-CV-068 FEED TONNAGE, 3310-WI-01330 1555 3300-25J-013 PROCESS WATER 1647 3900-25J-014 TERTIARY CRUSHER SCREEN FEED CONVEYOR NO. 10, C2-3310-CV-069 1645 3300-25J-014 BALL MILL SCREEN O/S BALL MILL SCREEN OVERSIZE CONVEYOR NO. 2, 1465 3300-25J-021 P2 J/SP FAULT P1 P2 J/SP FAULT P1 3310 01501 FV + 3310-WR-1441-C1A-2"-N 24"x20" 3310-WR-1143-C1A-8"-N 3310-WR-1141-C1A-24"-N 3310-WR-1454-C1A-2"-N SIZE: C2-3310-ST-505 BALL MILL SCREEN OVERSIZE CHUTE 3310 01521 FV + 24"x10" C2-3310-SC-501 3310-WR-1451-C1A-2"-N 10" 3310-WR-1437-C1A-2"-N 4" SIZE: C2-3310-ST-508 BALL MILL FEED SCREEN UNDERSIZE CHUTE 24"x10" 10" 3310-WR-1439-C1A-2"-N 3310-WR-1453-C1A-2"-N 3310-WR-1443-C1A-2"-N 4" 10" 3310-WR-1144-C1A-24"-N SIZE: C2-3310-ST-506 BALL MILL SCREEN OVERSIZE CHUTE 3310 01522 FE + C2-3310-ST-505 24"x10" 3310-WR-1455-C1A-2"-N 3310-WR-1442-C1A-2"-N SIZE: C2-3310-BX-507 BALL MILL SCREEN FEED BOX 3310-WR-1438-C1A-2"-N SIZE: C2-3310-ST-507 BALL MILL FEED SCREEN UNDERSIZE CHUTE C2-3310-BX-508 C2-3310-ST-507 3310-WR-1450-C1A-2"-N C2-3310-ST-508 3310 01522 FV + C2-3310-BX-507 C2-3310-SC-502 3310-WR-1432-C1A-20"-N 3310-WR-1435-C1A-8"-N 3310-WR-1142-C1A-8"-N 3310-WR-1447-C1A-8"-N 10" 3310-WR-1440-C1A-2"-N 3310 01502 FE + 3310-WR-1449-C1A-2"-N 3310-WR-1452-C1A-2"-N C2-3310-ST-506 3310 01501 FE + 3310 01521 FE + 24"x20" 3310 01502 FV + SIZE: C2-3310-BX-508 BALL MILL SCREEN FEED BOX 3310-WR-1444-C1A-20"-N 24"x10" 4" ES ES ES ES AG KM LT ISSUED FOR CLIENT REVIEW 23-Dec-11 B RP ISSUED FOR COMBINED REVIEW 29-Jun-11 A 12/23/2011 K. MUNDY A. GUNSON W. BIE L. TAMELIN 12/21/2011 4:26:15 PM WBS: 3310 B PIPING AND INSTRUMENTATION DIAGRAM BALL MILL FEED 3300-25J-015 SCREENS 501 AND 502 D 4 F B A 3 2 1 5 6 8 E 7 C REV. APPROVED CHK. DES. REV. DATE REVISION DESCRIPTION CLIENT LEAD ENGINEER SCALE DRAWING NUMBER CHECK DESIGN CHECK DRAWING DESIGNED BY DRAWN BY APPROVAL DATE APPROVAL DATE APPROVED CHK. DES. REV. DATE REVISION DESCRIPTION REFERENCE DRAWING No. 1:100 0 1:200 5m 10m 0 5m 10m 15m 20m 1:500 10m 0 20m 30m 40m 50m 1:1000 0 100m 50m 1:20 0 0.5m 1m 1.5m 2m 0 1:25 0.5m 1m 1.5m 1:33 1/3 2.5m 2m 0 1m 2m 3m 0 1:50 1m 2m 3m 4m 5m CAD FILE NAME: P:0CAD000SPEM** MODEL UPDATED: DWG. FILE UPDATED: MANUAL CHANGES MADE: YES NO YES NO YES NO PROJECT MANAGER ENGINEERING MANAGER AREA PROJECTENGINEER REFERENCE DRAWINGS SAFETY SHARE: APPROVAL DATE CONTRACT NO. SAFETY SHARE : BA6CVA1.IGR NOTICE: THIS DRAWING HAS NOT BEEN PUBLISHED AND IS THE SOLE PROPERTY OF FLUOR AND IS LENT TO THE BORROWER FOR THEIR CONFIDENTIAL USE ONLY, AND IN CONSIDERATION OF THE LOAN OF THIS DRAWING, THE BORROWER PROMISES AND AGREES TO RETURN IT UPON REQUEST AND AGREES THAT IT WILL NOT BE REPRODUCED, COPIED LENT OR OTHERWISE DISPOSED OF DIRECTLY OR INDIRECTLY, NOR USED FOR ANY OTHER PURPOSE OTHER THAN WHICH IT IS FURNISHED. NONE Apr 2011 240K-C2- SIZE: 3.6 m X 8.5 m MOTOR: C2-3310-SC-502 BALL MILL FEED SCREEN SIZE: 3.6 m X 8.5 m MOTOR: C2-3310-SC-501 BALL MILL FEED SCREEN C2-3310-CV-029 C2-3310-CV-029 FC FC FC FC PRODUCT PRODUCT ES 3310-WR-1142-C1A-8"-N V V V 3310-WR-1143-C1A-8"-N ES V V V 4" 4" 4" 4" 4"
  • 104.
    LHS M M T5 LHS RHS 3310 01604 ZSH 3310 01623 A SE RHS 3310 01621 HSA 3310 01635 B LE 3310 01605 ZSHH A,B 3310 01604 ZSH 3310 01623A ST 3310 01605 ZAH 3310 01630 WE 3310 01607 A TE 3310 01623 A SI 3310 01605 ZSH C,D 3310 01624 ZAH 3310 01635 A LE 3310 01630 WI 3310 00105 ZSH 3310 01630 WIT 3310 01627 B TI 3310 01626 A TE 3310 01607 A TI HH, P1 H, P2 3310 01681 XA 3310 01627 A TE 3310 01627 A TI 3310 01636 LIT 3310 01605 ZSHH RHS RHS 3310 01683 II 3310 01608 A XS 3310 01601 HSA 3310 01605 ZAHH 3310 01603 A SE 3310 01604 ZSHH 3310 01683 HS 3310 01683 XA 3310 00104 ZAHH 3310 01608 B XS 3310 01604 ZSHH LHS 3310 01606 A TE 3310 01626 B TI 3310 01624 ZSH A,B LHS 3310 01607 B TI HH, P1 H, P2 3310 01623 SDI 3310 01604 ZAH 3310 01603 B SI 3310 01602 HSA 3310 01623 B SI 3310 01626 A TI HH, P1 H, P2 3310 01606 A TI HH, P1 H, P2 3310 01624 ZSHH 3310 01602 HSS RHS 3310 01605 ZAH 3310 01606 B TE 3310 01636 A LI 3310 01625 ZSH 3310 01636 LI HH, P1 H, P2 L, P2 3310 01623 B ST 3310 01605 ZAHH 3310 01608 XA P1 3310 01617 LAL 3310 01615 B LAH P1 3310 01681 II 3310 01617 LSL 3310 01623 B SE 3310 01622 HSS RHS 3310 01604 ZAHH 3310 01615 B LE 3310 01616 LI 3310 01625 ZSHH A,B 3310 01615 B LSH 3310 01622 HSA LHS 3310 01616 LE 3310 01606 B TI HH, P1 H, P2 3310 01625 ZAH LHS P2 A,B 3310 01615 A LE 3310 01616 LIT 3310 01635 A LAH 3310 01621 HSS 3310 01630 SE 3310 01603 B SE 3310 01624 ZAHH P1 3310 01635 A LSH 3310 01607 B TE 3310 01616 A LI 3310 01615 A LSH 3310 01603 A SI 3310 01615 A LAH 3310 01636 LE 3310 01603 SDI 3310 01625 ZAHH 3310 01626 B TE 3310 01681 HS 3310 01603 A ST 3310 01635 B LAH H, P1 3310 01601 HSS 3310 01637 LAL 3310 01603 B ST 3310 01627 B TE RHS 3310 01637 LSL 3310 01635 B LSH 3310 01604 ZAH TERTIARY CRUSHER BALL MILL SCREEN FEED BOX, C2-3310-BX-607 1579 3300-25J-018 WATER RATIO CONTROLLER, 3310-FFFIC-01801 1580 3300-25J-018 TERTIARY CRUSHER BALL MILL SCREEN FEEDER, C2-3310-FE-602 1575 3300-25J-017 TERTIARY CRUSHER HRGR PRODUCT CONVEYOR NO. 2, C2-3230-CV-028 1567 3300-25J-013 PLANT AIR 1569 3900-25J-022 BIN CONTINUED ON PID 3300-25J-013 A-B A,B P1 LHS J/SP A,B H, P1 FAULT A,B RHS LHS C,D H, P1 LHS P1 A,B P1 C,D LHS RHS A,B P1 LHS HH, P1 H, P2 L, P2 C,D J/SP P2 FAULT TEAR A,B P1 P2 RHS A,B A,B A-B PRODUCT LHS RHS A,B P1 RHS P2 A,B P1 HH, P1 H, P2 HH, P1 H, P2 LHS C, D P1 RHS C, D P1 P1 A,B RHS HH, P1 H, P2 H, P1 LHS P2 A,B P2 P1 LHS A,B P1 A,B A,B ES V V ES V V V V V ES ES ES V V V V ES SIZE: C2-3310-ST-341 BALL MILL SCREEN FEED CONVEYOR HEAD CHUTE SIZE: MOTOR: C2-3310-FA-501 BALL MILL FEED BIN DUST COLLECTOR FAN ES SIZE: C2-3310-SL-611 BALL MILL SCREEN FEEDER BELT SCALE SIZE: C2-3310-DC-501 BALL MILL FEED BIN DUST COLLECTOR (DRY) ES SIZE: C2-3310-ST-601 BALL MILL SCREEN FEEDER SKIRT V V V ES V ES SIZE: 8000 t C2-3310-BN-601 BALL MILL FEED SURGE BIN V SIZE: C2-3310-ST-603 BALL MILL SCREEN FEED CHUTE V SIZE: C2-3310-ST-602 BALL MILL SCREEN FEEDER SKIRT V V V V V V V TO ATMOSPHERE SIZE: C2-3310-DC-601 BALL MILL FEED BIN DUST COLLECTOR (DRY) V ES V 3310-AP-1310-C1A-2"-N C2-3310-FE-601 V C2-3310-BN-601 C2-3310-CV-070 C2-3310-SL-611 C2-3310-ST-341 C2-3310-FA-601 C2-3310-ST-603 AG KM LT ISSUED FOR CLIENT REVIEW 23-Dec-11 B RP ISSUED FOR COMBINED REVIEW 29-Jun-11 A 12/23/2011 K. MUNDY A. GUNSON W. BIE L. TAMELIN 12/22/2011 4:04:27 PM WBS: 3310 B PIPING AND INSTRUMENTATION DIAGRAM BALL MILL FEED 3300-25J-016 SCREEN FEEDER 601 SIZE: C2-3310-ST-361 BALL MILL SCREEN FEED CONVEYOR SKIRT C2-3310-ST-601 TO ATMOSPHERE C2-3310-FA-501 C2-3310-ST-436 C2-3310-ST-435 C2-3310-ST-361 C2-3310-DC-501 C2-3310-ST-602 C2-3310-DC-601 SIZE: MOTOR: C2-3310-FA-601 BALL MILL FEED BIN DUST COLLECTOR FAN SIZE: MOTOR: C2-3310-FE-601 BALL MILL SCREEN FEEDER SIZE: 2134 mm X 42 m L MOTOR: 112.00 kW C2-3310-CV-070 BALL MILL SCREEN FEED CONVEYOR NO. 11 SIZE: C2-3310-ST-436 BALL MILL FEED BIN INSERT SIZE: C2-3310-ST-435 BALL MILL FEED BIN INSERT D 4 F B A 3 2 1 5 6 8 E 7 C REV. APPROVED CHK. DES. REV. DATE REVISION DESCRIPTION CLIENT LEAD ENGINEER SCALE DRAWING NUMBER CHECK DESIGN CHECK DRAWING DESIGNED BY DRAWN BY APPROVAL DATE APPROVAL DATE APPROVED CHK. DES. REV. DATE REVISION DESCRIPTION REFERENCE DRAWING No. 1:100 0 1:200 5m 10m 0 5m 10m 15m 20m 1:500 10m 0 20m 30m 40m 50m 1:1000 0 100m 50m 1:20 0 0.5m 1m 1.5m 2m 0 1:25 0.5m 1m 1.5m 1:33 1/3 2.5m 2m 0 1m 2m 3m 0 1:50 1m 2m 3m 4m 5m CAD FILE NAME: P:0CAD000SPEM** MODEL UPDATED: DWG. FILE UPDATED: MANUAL CHANGES MADE: YES NO YES NO YES NO PROJECT MANAGER ENGINEERING MANAGER AREA PROJECTENGINEER REFERENCE DRAWINGS SAFETY SHARE: APPROVAL DATE CONTRACT NO. SAFETY SHARE : BA6CVA1.IGR NOTICE: THIS DRAWING HAS NOT BEEN PUBLISHED AND IS THE SOLE PROPERTY OF FLUOR AND IS LENT TO THE BORROWER FOR THEIR CONFIDENTIAL USE ONLY, AND IN CONSIDERATION OF THE LOAN OF THIS DRAWING, THE BORROWER PROMISES AND AGREES TO RETURN IT UPON REQUEST AND AGREES THAT IT WILL NOT BE REPRODUCED, COPIED LENT OR OTHERWISE DISPOSED OF DIRECTLY OR INDIRECTLY, NOR USED FOR ANY OTHER PURPOSE OTHER THAN WHICH IT IS FURNISHED. NONE Apr 2011 240K-C2- PRODUCT PRODUCT 3310-AP-1311-C1A-2"-N VENDOR VENDOR ES 3310 01682 II 3310 01682 H TI BRG REAR H,P2 HH,P1 3310 01682 G TI BRG FRONT H,P2 HH,P1 3310 01682 G TE 3310 01682 XA 3310 01682 H TE V V 3310 01682 HS 3310 01611 XA + J/SP FAULT AFD 3310 01692 XA 3310 01692 HS J/SP 3310 01692 II FAULT 3310 01631 XA + 3310 01641 VE 3310 01641 VT 3310 01643 TE 3310 01642 LE 3310 01642 LSL 3310 01642 LA 3310 01641 VI ES V V V V V V H, P2 HH, P1 3310 01643 TI L, P2 H, P2 HH, P1 GEAR REDUCER T4 3310 01619 PDAH 3310 01639 PDAH NOTE: 1. THE BALL MILL SCREEN FEEDER AND BALL MILL SCREEN FEED CONVEYOR DUST SUPPRESSION SYSTEM WILL BE FURTHER DEFINED IN REVISIONS. SPRAY WATER WILL BE SUPPLIED BY THE PROCESS WATER SYSTEM.
  • 105.
    D 4 F B A 3 2 1 5 68 E 7 C REV. APPROVED CHK. DES. REV. DATE REVISION DESCRIPTION CLIENT LEAD ENGINEER SCALE DRAWING NUMBER CHECK DESIGN CHECK DRAWING DESIGNED BY DRAWN BY APPROVAL DATE APPROVAL DATE APPROVED CHK. DES. REV. DATE REVISION DESCRIPTION REFERENCE DRAWING No. 1:100 0 1:200 5m 10m 0 5m 10m 15m 20m 1:500 10m 0 20m 30m 40m 50m 1:1000 0 100m 50m 1:20 0 0.5m 1m 1.5m 2m 0 1:25 0.5m 1m 1.5m 1:33 1/3 2.5m 2m 0 1m 2m 3m 0 1:50 1m 2m 3m 4m 5m CAD FILE NAME: P:0CAD000SPEM** MODEL UPDATED: DWG. FILE UPDATED: MANUAL CHANGES MADE: YES NO YES NO YES NO PROJECT MANAGER ENGINEERING MANAGER AREA PROJECTENGINEER REFERENCE DRAWINGS SAFETY SHARE: APPROVAL DATE CONTRACT NO. SAFETY SHARE : BA6CVA1.IGR NOTICE: THIS DRAWING HAS NOT BEEN PUBLISHED AND IS THE SOLE PROPERTY OF FLUOR AND IS LENT TO THE BORROWER FOR THEIR CONFIDENTIAL USE ONLY, AND IN CONSIDERATION OF THE LOAN OF THIS DRAWING, THE BORROWER PROMISES AND AGREES TO RETURN IT UPON REQUEST AND AGREES THAT IT WILL NOT BE REPRODUCED, COPIED LENT OR OTHERWISE DISPOSED OF DIRECTLY OR INDIRECTLY, NOR USED FOR ANY OTHER PURPOSE OTHER THAN WHICH IT IS FURNISHED. NONE Apr 2011 240K-C2- TERTIARY CRUSHER BALL MILL SURGE BIN, C2-3310-BN-601 1575 3300-25J-016 3310 01708 XA 3310 01723 A SI 3310 01725 ZSHH A,B 3310 01703 SDI 3310 01726 A TI 3310 01703 B ST 3310 01721 HSS HH, P1 H, P2 3310 01702 HSA 3310 01722 HSS 3310 01706 A TI RHS C2-3310-ST-604 HH, P1 H, P2 RHS A,B A,B 3310 01703 B SE 3310 01727 A TI 3310 01707 B TE HH, P1 H, P2 HH, P1 H, P2 3310 01725 ZSH LHS 3310 01701 HSA 3310 01705 ZAHH RHS 3310 01727 A TE 3310 01730 WIT LHS H, P1 A,B C2-3310-ST-342 3310 01726 A TE C2-3310-SL-612 RHS LHS A,B A,B P1 3310 01730 WE TEAR LHS 3310 01708 A XS 3310 01723 A SE SIZE: C2-3310-ST-604 BALL MILL SCREEN FEED CHUTE RHS A,B 3310 01704 ZSHH 3310 01706 B TI 3310 01706 A TE LHS HH, P1 H, P2 RHS SIZE: C2-3310-SL-612 BALL MILL SCREEN FEEDER BELT SCALE A,B C,D SIZE: C2-3310-ST-342 BALL MILL FEED SCREEN CONVEYOR HEAD CHUTE 3310 01724 ZSHH 3310 01703 B SI LHS 3310 01727 B TI 3310 01722 HSA C2-3310-FE-602 3310 01724 ZSH 3310 01703 A SE A,B A,B A,B 3310 01703 A SI 3310 01706 B TE RHS 3310 01703 A ST 3310 01727 B TE A,B P1 HH, P1 H, P2 3310 01701 HSS 3310 01707 A TI 3310 01726 B TI HH, P1 H, P2 3310 01723 A ST 3310 01705 ZSH 3310 01702 HSS 3310 01707 A TE C,D RHS HH, P1 H, P2 3310 01721 HSA 3310 01726 B TE A,B 3310 01707 B TI LHS 3310 01704 ZSH A,B A,B LHS 3310 01705 ZSHH 3310 01730 WI 3310 01704 ZAHH P1 P1 3310 01730 SE 3310 01708 B XS LHS RHS P1 3310 01704 ZSH 3310 01705 ZSH C2-3310-CV-071 3310 01723 SDI H, P1 3310 01715 B LSH 3310 01715 B LAH P1 3310 01715 B LE 3310 01715 A LSH 3310 01715 A LAH P1 3310 01715 A LE 3310 01735 B LSH 3310 01735 B LAH P1 3310 01735 B LE 3310 01735 A LSH 3310 01735 A LAH P1 3310 01735 A LE 3310 01723 B SI 3310 01723 B SE 3310 01723 B ST TERTIARY CRUSHER BALL MILL SCREEN FEED BOX, C2-3310-BX-608 1675 3300-25J-018 WATER RATIO CONTROLLER, 3310-FFFIC-01821 1676 3300-25J-018 T5 V ES V V V V ES V ES V ES V ES ES V ES V ES ES AG KM LT ISSUED FOR CLIENT REVIEW 23-Dec-11 B RP ISSUED FOR COMBINED REVIEW 29-Jun-11 A 12/23/2011 K. MUNDY A. GUNSON W. BIE L. TAMELIN 12/21/2011 4:26:31 PM WBS: 3310 B PIPING AND INSTRUMENTATION DIAGRAM BALL MILL FEED 3300-25J-017 SCREEN FEEDER 602 3310 01704 ZSHH 3310 01705 ZSHH V V V V RHS LHS A,B RHS LHS LHS RHS RHS LHS SIZE: MOTOR: C2-3310-FE-602 BALL MILL SCREEN FEEDER SIZE: 2134 mm x 35 m L MOTOR: 112.00 kW C2-3310-CV-071 BALL MIL SCREEN FEED CONVEYOR NO. 12 C2-3310-ST-362 SIZE: C2-3310-ST-362 BALL MILL SCREEN FEED CONVEYOR SKIRT V V V V V V V V V V V A,B A,B A,B 3310 01705 ZAH 3310 01704 ZAH V V C,D C,D P1 P2 P2 P1 3310 01705 ZAHH LHS C,D RHS C,D 3310 01704 ZAHH 3310 01705 ZAH 3310 01704 ZAH P1 P2 P2 P1 3310 01725 ZAHH LHS A,B RHS A,B 3310 01724 ZAHH 3310 01725 ZAH 3310 01724 ZAH P1 P2 P2 P1 PRODUCT PRODUCT 3310 01782 II 3310 01782 H TI BRG REAR H,P2 HH,P1 3310 01782 G TI BRG FRONT H,P2 HH,P1 3310 01782 G TE 3310 01782 XA 3310 01782 H TE V V 3310 01782 HS 3310 01711 XA + J/SP FAULT AFD GEAR REDUCER 3310 01792 XA 3310 01792 HS J/SP 3310 01792 II FAULT 3310 01731 XA + 3310 01741 VE 3310 01741 VT 3310 01743 TE 3310 01742 LE 3310 01742 LSL 3310 01742 LA 3310 01741 VI ES V V V V V V H, P2 HH, P1 3310 01743 TI L, P2 H, P2 HH, P1 T4 NOTES: 1. THE BALL MILL SCREEN FEEDER AND BALL MILL SCREEN FEED CONVEYOR DUST SUPPRESSION SYSTEM WILL BE FURTHER DEFINED IN REVISIONS. SPRAY WATER WILL BE SUPPLIED BY THE PROCESS WATER SYSTEM.
  • 106.
    T1 T1 3310 01801 FIC 3310 01823 VAL 3310 01803 VAL 3310 01821 FIC 3310 01891 HS 3310 01803 VE M 3310 01822 FIC 3310 01881 HS 3310 01821 FFFIC 3310 01824 LSH 3310 01891 II 3310 01804 LSH 3310 01804 LAH 3310 01823 VT M 3310 01801 FIT 3310 01802 FIC 3310 01824 LAH 3310 01803 VT 3310 01823 VSL 3310 01801 FFFIC 3310 01822 FIT 3310 01802 FIT 3310 01881 II 3310 01823 VE M 3310 01891 XA 3310 01803 VSL M 3310 01881 XA 3310 01821 FIT BALL MILL SCREENU/S PRIMARY CYCLONE FEED SUMP NO. 6, C2-3310-BX-601 1674 3300-25J-046 BALL MILL SCREEN O/S BALL MILL SCREEN OVERSIZE CONVEYOR NO. 2, 1463 3300-25J-021 PROCESS WATER 1669 3900-25J-014 TERTIARY CRUSHER SCREEN FEED CONVEYOR NO. 11, C2-3310-CV-070 1579 3300-25J-016 PROCESS WATER 1671 3900-25J-014 BALL MILL SCREEN O/S BALL MILL SCREEN OVERSIZE CONVEYOR NO. 2, 1462 3300-25J-021 PROCESS WATER 1670 3900-25J-014 C2-3310-CV-070 FEED TONNAGE, 3310-WI-01630 1580 3300-25J-016 TERTIARY CRUSHER SCREEN FEED CONVEYOR NO. 12, C2-3310-CV-071 1675 3300-25J-017 PROCESS WATER 1672 3900-25J-014 BALL MILL SCREEN U/S PRIMARY CYCLONE FEED SUMP NO. 6, C2-3310-BX-601 1673 3300-25J-046 C2-3310-CV-071 FEED TONNAGE, 3310-WI-01730 1676 3300-25J-017 FAULT P1 P2 P1 J/SP FAULT J/SP P2 3310-WR-1468-C1A-20"-N 3310-WR-1463-C1A-2"-N 3310-WR-1478-C1A-2"-N C2-3310-SC-601 AG KM LT ISSUED FOR CLIENT REVIEW 23-Dec-11 B RP ISSUED FOR COMBINED REVIEW 29-Jun-11 A 12/23/2011 K. MUNDY A. GUNSON W. BIE L. TAMELIN 12/22/2011 4:07:25 PM WBS: 3310 B PIPING AND INSTRUMENTATION DIAGRAM BALL MILL FEED 3300-25J-018 SCREENS 601 AND 602 10" 3310-WR-1473-C1A-2"-N 24"x10" 3310 01822 FE + 3310-WR-1476-C1A-2"-N SIZE: C2-3310-ST-606 BALL MILL SCREEN OVERSIZE CHUTE SIZE: C2-3310-ST-607 BALL MILL FEED SCREEN UNDERSIZE CHUTE 4" 3310-WR-1467-C1A-2"-N 3310-WR-1461-C1A-2"-N 3310-WR-1465-C1A-2"-N C2-3310-BX-607 3310-WR-1466-C1A-2"-N 3310-WR-1135-C1A-24"-N 10" 3310-WR-1137-C1A-8"-N 3310-WR-1477-C1A-2"-N 3310 01822 FV + 24"x20" 3310-WR-1138-C1A-24"-N 3310-WR-1479-C1A-2"-N SIZE: C2-3310-ST-608 BALL MILL FEED SCREEN UNDERSIZE CHUTE SIZE: C2-3310-BX-607 BALL MILL SCREEN FEED BOX 3310 01821 FE + SIZE: C2-3310-ST-605 BALL MILL SCREEN OVERSIZE CHUTE 4" 10" 3310-WR-1475-C1A-2"-N 24"x10" C2-3310-SC-602 3310-WR-1464-C1A-2"-N 24"x20" 24"x10" 3310 01802 FV + 3310-WR-1136-C1A-8"-N C2-3310-BX-608 C2-3310-ST-605 3310 01802 FE + 3310-WR-1459-C1A-8"-N C2-3310-ST-608 3310 01821 FV + 24"x10" SIZE: C2-3310-BX-608 BALL MILL SCREEN FEED BOX 3310 01801 FE + 3310-WR-1471-C1A-8"-N 3310-WR-1474-C1A-2"-N 4" C2-3310-ST-607 3310-WR-1456-C1A-20"-N SIZE: 3.6 m X 8.5 m MOTOR: C2-3310-SC-602 BALL MILL FEED SCREEN SIZE: 3.6 m X 8.5 m MOTOR: C2-3310-SC-601 BALL MILL FEED SCREEN 10" C2-3310-ST-606 3310 01801 FV + 3310-WR-1462-C1A-2"-N ES ES ES ES ES D 4 F B A 3 2 1 5 6 8 E 7 C REV. APPROVED CHK. DES. REV. DATE REVISION DESCRIPTION CLIENT LEAD ENGINEER SCALE DRAWING NUMBER CHECK DESIGN CHECK DRAWING DESIGNED BY DRAWN BY APPROVAL DATE APPROVAL DATE APPROVED CHK. DES. REV. DATE REVISION DESCRIPTION REFERENCE DRAWING No. 1:100 0 1:200 5m 10m 0 5m 10m 15m 20m 1:500 10m 0 20m 30m 40m 50m 1:1000 0 100m 50m 1:20 0 0.5m 1m 1.5m 2m 0 1:25 0.5m 1m 1.5m 1:33 1/3 2.5m 2m 0 1m 2m 3m 0 1:50 1m 2m 3m 4m 5m CAD FILE NAME: P:0CAD000SPEM** MODEL UPDATED: DWG. FILE UPDATED: MANUAL CHANGES MADE: YES NO YES NO YES NO PROJECT MANAGER ENGINEERING MANAGER AREA PROJECTENGINEER REFERENCE DRAWINGS SAFETY SHARE: APPROVAL DATE CONTRACT NO. SAFETY SHARE : BA6CVA1.IGR NOTICE: THIS DRAWING HAS NOT BEEN PUBLISHED AND IS THE SOLE PROPERTY OF FLUOR AND IS LENT TO THE BORROWER FOR THEIR CONFIDENTIAL USE ONLY, AND IN CONSIDERATION OF THE LOAN OF THIS DRAWING, THE BORROWER PROMISES AND AGREES TO RETURN IT UPON REQUEST AND AGREES THAT IT WILL NOT BE REPRODUCED, COPIED LENT OR OTHERWISE DISPOSED OF DIRECTLY OR INDIRECTLY, NOR USED FOR ANY OTHER PURPOSE OTHER THAN WHICH IT IS FURNISHED. NONE Apr 2011 240K-C2- FC FC FC FC PRODUCT PRODUCT 3310-WR-1460-C1A-8"-N C2-3310-CV-029 C2-3310-CV-029 ES 3310-WR-1136-C1A-8"-N V V V V V V 3310-WR-1137-C1A-8"-N 4" 4" 4" 4"
  • 107.
    D 4 F B A 3 2 1 5 68 E 7 C REV. APPROVED CHK. DES. REV. DATE REVISION DESCRIPTION CLIENT LEAD ENGINEER SCALE DRAWING NUMBER CHECK DESIGN CHECK DRAWING DESIGNED BY DRAWN BY APPROVAL DATE APPROVAL DATE APPROVED CHK. DES. REV. DATE REVISION DESCRIPTION REFERENCE DRAWING No. 1:100 0 1:200 5m 10m 0 5m 10m 15m 20m 1:500 10m 0 20m 30m 40m 50m 1:1000 0 100m 50m 1:20 0 0.5m 1m 1.5m 2m 0 1:25 0.5m 1m 1.5m 1:33 1/3 2.5m 2m 0 1m 2m 3m 0 1:50 1m 2m 3m 4m 5m CAD FILE NAME: P:0CAD000SPEM** MODEL UPDATED: DWG. FILE UPDATED: MANUAL CHANGES MADE: YES NO YES NO YES NO PROJECT MANAGER ENGINEERING MANAGER AREA PROJECTENGINEER REFERENCE DRAWINGS SAFETY SHARE: APPROVAL DATE CONTRACT NO. SAFETY SHARE : BA6CVA1.IGR NOTICE: THIS DRAWING HAS NOT BEEN PUBLISHED AND IS THE SOLE PROPERTY OF FLUOR AND IS LENT TO THE BORROWER FOR THEIR CONFIDENTIAL USE ONLY, AND IN CONSIDERATION OF THE LOAN OF THIS DRAWING, THE BORROWER PROMISES AND AGREES TO RETURN IT UPON REQUEST AND AGREES THAT IT WILL NOT BE REPRODUCED, COPIED LENT OR OTHERWISE DISPOSED OF DIRECTLY OR INDIRECTLY, NOR USED FOR ANY OTHER PURPOSE OTHER THAN WHICH IT IS FURNISHED. NONE Apr 2011 240K-C2- C2-3310-CV-019 3310 02010 SE 3310 02003 A SE 3310 02007 A TE 3310 02006 A TE 3310 02003 A ST 3310 02004 ZSH 3310 02005 ZSH 3310 02008 A XS 3310 02007 A TI 3310 02006 A TI 3310 02008 XA 3310 02004 ZSHH 3310 02005 ZSHH 3310 02003 A SI 3310 02005 ZAH 3310 02004 ZAH 3310 02010 WE 3310 02010 WIT 3310 02010 WI C2-3310-SL-101 RHS H, P2 HH, P1 LHS H, P2 HH, P1 RHS LHS P1 TEAR L, P2 H, P2 3310 02002 HSS 3310 02001 HSS 3310 02001 HSA P1 A-H C2-3310-ST-086 3310 02015 B LSH 3310 02043 TE 3310 02043 TI 3310 02015 B LAH H, P2 HH, P1 P1 3310 02081 II 3310 02081 XA 3310 02081 HS 3310 02011 XA + A - H J/SP FVNR CONV SAFETY INTERLOCKS A - H LHS A - H GEAR REDUCER T4 RHS LHS A - D A - D 3310 02081 H TE 3310 02081 G TE 3310 02081 H TI 3310 02081 G TI BRG FRONT H, P2 HH, P1 BRG REAR H, P2 HH, P1 RHS 3310 02002 HSA A-H P1 RHS LHS BALL MILL SCREEN O/S BALL MILL FEED SCREEN, C2-3310-SC-101 1304 3300-25J-003 BALL MILL SCREEN O/S BALL MILL FEED SCREEN, C2-3310-SC-201 1305 3300-25J-006 BALL MILL SCREEN O/S BALL MILL FEED SCREEN, C2-3310-SC-301 1306 3300-25J-009 BALL MILL SCREENS O/S TERTIARY CRUSHER SURGE BIN FEED CONVEYOR NO. 1 1307 3200-25J-025 BALL MILL SCREEN O/S BALL MILL FEED SCREEN, C2-3310-SC-102 1308 3300-25J-003 BALL MILL SCREEN O/S BALL MILL FEED SCREEN, C2-3310-SC-202 1375 3300-25J-006 BALL MILL SCREEN O/S BALL MILL FEED SCREEN, C2-3310-SC-302 1376 3300-25J-009 3310 02008 B XS LHS RHS 3310 02015 A LSH 3310 02015 A LAH P1 3310 02015 B LE 3310 02015 A LE 3310 02003 B SE 3310 02003 B ST 3310 02003 B SI 3310 02003 SDI H, P1 SIZE: 1829 mm C2-3310-SL-101 CV-019 2-IDLER BELT SCALE SIZE: C2-3310-ST-086 CONVEYOR CV-019 HEAD/TRANSFER CHUTE ES ES AG KM LT ISSUED FOR CLIENT REVIEW 23-Dec-11 B RP ISSUED FOR COMBINED REVIEW 29-Jun-11 A 12/23/2011 K. MUNDY A. GUNSON W. BIE L. TAMELIN 12/23/2011 9:02:24 AM WBS: 3310 B PIPING AND INSTRUMENTATION DIAGRAM BALL MILL FEED 3300-25J-020 BALL MILL SCREEN O/S CONVEYOR NO. 1 A,B FAULT SIZE: 1829 mm X 229 m L MOTOR: 597.00 kW C2-3310-CV-019 BALL MILL SCREEN OVERSIZE CONVEYOR NO. 1 V V V V C2-3310-MA-015 V ES V V 3310 02085 HS J/SP 3310 02085 XA 3310 02085 II C2-3310-ST-319 C2-3310-BN-319 FAULT T4 3310 02021 SE 3310 02021 SSL 3310 02021 SAL P1 3310 02022 ZSH 3310 02022 ZAH P2 3310 02022 ZAHH P1 3310 02022 ZSHH 3310 02013 A XE 3310 02013 B XE 3310 02013 A XY 3310 02013 B XY 3310 02013 XIH V V V V V V V A - D A - D 3310 02005 ZAHH 3310 02004 ZAHH P2 P2 P1 A - D LHS P1 A - D RHS SIZE: C2-3310-MA-015 CV-019 SELF CLEANING MAGNET SIZE: C2-3310-ST-319 CV-019 TRAMP METAL CHUTE SIZE: C2-3310-BN-319 CV-019 TRAMP METAL BIN TEAR ES V V A-B A-B A-B A-B 3310 02041 VE 3310 02041 VT 3310 02042 LE 3310 02042 LSL 3310 02041 VI 3310 02042 LA ES H, P2 HH, P1 L, P2 V V V V SIZE: C2-3310-ZE-016 CV-19 SENSOR GUARD BELT RIP DETECTOR C2-3310-ZE-016 A D E C B A-E A-E A-E A-E SENSOR GUARD
  • 108.
    D 4 F B A 3 2 1 5 68 E 7 C REV. APPROVED CHK. DES. REV. DATE REVISION DESCRIPTION CLIENT LEAD ENGINEER SCALE DRAWING NUMBER CHECK DESIGN CHECK DRAWING DESIGNED BY DRAWN BY APPROVAL DATE APPROVAL DATE APPROVED CHK. DES. REV. DATE REVISION DESCRIPTION REFERENCE DRAWING No. 1:100 0 1:200 5m 10m 0 5m 10m 15m 20m 1:500 10m 0 20m 30m 40m 50m 1:1000 0 100m 50m 1:20 0 0.5m 1m 1.5m 2m 0 1:25 0.5m 1m 1.5m 1:33 1/3 2.5m 2m 0 1m 2m 3m 0 1:50 1m 2m 3m 4m 5m CAD FILE NAME: P:0CAD000SPEM** MODEL UPDATED: DWG. FILE UPDATED: MANUAL CHANGES MADE: YES NO YES NO YES NO PROJECT MANAGER ENGINEERING MANAGER AREA PROJECTENGINEER REFERENCE DRAWINGS SAFETY SHARE: APPROVAL DATE CONTRACT NO. SAFETY SHARE : BA6CVA1.IGR NOTICE: THIS DRAWING HAS NOT BEEN PUBLISHED AND IS THE SOLE PROPERTY OF FLUOR AND IS LENT TO THE BORROWER FOR THEIR CONFIDENTIAL USE ONLY, AND IN CONSIDERATION OF THE LOAN OF THIS DRAWING, THE BORROWER PROMISES AND AGREES TO RETURN IT UPON REQUEST AND AGREES THAT IT WILL NOT BE REPRODUCED, COPIED LENT OR OTHERWISE DISPOSED OF DIRECTLY OR INDIRECTLY, NOR USED FOR ANY OTHER PURPOSE OTHER THAN WHICH IT IS FURNISHED. NONE Apr 2011 240K-C2- BALL MILL SCREEN O/S TERTIARY CRUSHER SURGE BIN FEED CONVEYOR NO. 2, 1460 3200-25J-026 BALL MILLL SCREEN O/S BALL MILL FEED SCREEN, C2-3310-SC-601 1462 3300-25J-018 BALL MILLL SCREEN O/S BALL MILL FEED SCREEN, C2-3310-SC-602 1463 3300-25J-018 BALL MILLL SCREEN O/S BALL MILL FEED SCREEN, C2-3310-SC-501 1464 3300-25J-015 BALL MILLL SCREEN O/S BALL MILL FEED SCREEN, C2-3310- SC-502 1465 3300-25J-015 BALL MILLL SCREEN O/S BALL MILL FEED SCREEN, C2-3310-SC-401 1466 3300-25J-012 BALL MILLL SCREEN O/S BALL MILL FEED SCREEN, C2-3310-SC-402 1467 3300-25J-012 AG KM LT ISSUED FOR CLIENT REVIEW 23-Dec-11 B RP ISSUED FOR COMBINED REVIEW 29-Jun-11 A 12/23/2011 K. MUNDY A. GUNSON W. BIE L. TAMELIN 12/23/2011 9:01:17 AM WBS: 3310 B PIPING AND INSTRUMENTATION DIAGRAM BALL MILL FEED 3300-25J-021 BALL MILL SCREEN O/S CONVEYOR NO. 2 T4 P1 3310 02115 A LAH 3310 02122 ZAHH 3310 02115 A LSH P2 3310 02122 ZAH 3310 02122 ZSH RHS P1 LHS 3310 02121 SAL 3310 02121 SSL 3310 02121 SE T4 FAULT 3310 02104 ZAH 3310 02105 ZAH A - H 3310 02103 A SI LHS 3310 02105 ZSHH A - H 3310 02104 ZSHH 3310 02108 XA FVNR CONV SAFETY INTERLOCKS 3310 02108 B XS C2-3310-BN-329 3310 02106 A TI C2-3310-ST-329 3310 02107 A TI 3310 02185 II 3310 02108 A XS J/SP 3310 02185 XA 3310 02105 ZSH A - H J/SP 3310 02104 ZSH 3310 02185 HS 3310 02103 A ST 3310 02106 A TE 3310 02111 XA + 3310 02107 A TE 3310 02181 HS 3310 02103 A SE 3310 02181 XA 3310 02110 SE 3310 02181 II C2-3310-CV-029 P1 V V ES V C2-3310-MA-016 H, P2 HH, P1 LHS V P1 RHS A-H 3310 02115 B LAH 3310 02102 HSA SIZE: C2-3310-BN-329 CV-029 TRAMP METAL BIN RHS SIZE: C2-3310-ST-329 CV-029 TRAMP METAL CHUTE SIZE: C2-3310-MA-016 CV-029 SELF CLEANING MAGNET 3310 02143 TI P1 A - D RHS 3310 02143 TE V P1 A - D LHS 3310 02115 B LSH V P2 V P2 3310 02104 ZAHH C2-3310-ST-096 3310 02105 ZAHH A-H A - D P1 A - D SIZE: 1829 mm X 229 m L MOTOR: 597.00 kW C2-3310-CV-029 BALL MILL SCREEN OVERSIZE CONVEYOR NO. 2 V BRG REAR H, P2 HH, P1 V BRG FRONT H, P2 HH, P1 FAULT 3310 02101 HSA V A,B V V 3310 02101 HSS ES V 3310 02102 HSS 3310 02181 G TI V L, P2 H, P2 3310 02181 H TI TEAR 3310 02181 G TE ES P1 3310 02181 H TE LHS SIZE: C2-3310-ST-096 CONVEYOR CV-029 HEAD/TRANSFER CHUTE H, P2 HH, P1 RHS SIZE: 1829 mm C2-3310-SL-201 CV-029 2-IDLER BELT SCALE H, P2 HH, P1 LHS A - D GEAR REDUCER RHS A - D C2-3310-SL-201 LHS RHS H, P1 3310 02113 XIH 3310 02113 B XY 3310 02113 A XY 3310 02110 WI 3310 02103 SDI 3310 02110 WIT 3310 02103 B SI 3310 02110 WE 3310 02103 B ST 3310 02103 B SE 3310 02113 B XE 3310 02113 A XE 3310 02115 A LE 3310 02122 ZSHH 3310 02115 B LE P1 C2-3240-CV--041 TEAR ES V V A-B A-B A-B A-B SIZE: C2-3310-ZE-017 CV-029 SENSOR GUARD BELT RIP DETECTOR 3310 02141 VE 3310 02141 VT 3310 02142 LE 3310 02142 LSL 3310 02141 VI 3310 02142 LA V V V V H, P2 HH, P1 L, P2 ES D E C A B A-E A-E A-E A-E C2-3310-ZE-017 SENSOR GUARD
  • 109.
    3310 02203 FIT 3310 02203 FI L, P2 LL, P1 3310 02202 LIC 3310 02206 PI 3310 02207 PI 3310 02203 PIT 3310 02203 PI L,P1 3310 02202 LE 3310 02202 LT 3310 02202 LI 3310 02209 LIT 3310 02209 LE 3310 02282 XA 3310 02282 II 3310 02282 HS J/SP 3310 02209 LI H, P2 HH, P1 L,P2 M NOTE 2 NOTE 7 MIN NOTE 3 C2-3310-PP-103 36" C2-3310-BX-101 D 4 F B A 3 2 1 5 6 8 E 7 C REV. APPROVED CHK. DES. REV. DATE REVISION DESCRIPTION CLIENT LEAD ENGINEER SCALE DRAWING NUMBER CHECK DESIGN CHECK DRAWING DESIGNED BY DRAWN BY APPROVAL DATE APPROVAL DATE APPROVED CHK. DES. REV. DATE REVISION DESCRIPTION REFERENCE DRAWING No. 1:100 0 1:200 5m 10m 0 5m 10m 15m 20m 1:500 10m 0 20m 30m 40m 50m 1:1000 0 100m 50m 1:20 0 0.5m 1m 1.5m 2m 0 1:25 0.5m 1m 1.5m 1:33 1/3 2.5m 2m 0 1m 2m 3m 0 1:50 1m 2m 3m 4m 5m CAD FILE NAME: P:0CAD000SPEM** MODEL UPDATED: DWG. FILE UPDATED: MANUAL CHANGES MADE: YES NO YES NO YES NO PROJECT MANAGER ENGINEERING MANAGER AREA PROJECTENGINEER REFERENCE DRAWINGS SAFETY SHARE: APPROVAL DATE CONTRACT NO. SAFETY SHARE : BA6CVA1.IGR NOTICE: THIS DRAWING HAS NOT BEEN PUBLISHED AND IS THE SOLE PROPERTY OF FLUOR AND IS LENT TO THE BORROWER FOR THEIR CONFIDENTIAL USE ONLY, AND IN CONSIDERATION OF THE LOAN OF THIS DRAWING, THE BORROWER PROMISES AND AGREES TO RETURN IT UPON REQUEST AND AGREES THAT IT WILL NOT BE REPRODUCED, COPIED LENT OR OTHERWISE DISPOSED OF DIRECTLY OR INDIRECTLY, NOR USED FOR ANY OTHER PURPOSE OTHER THAN WHICH IT IS FURNISHED. NONE Apr 2011 240K-C2- MIN MIN NOTE 3 3310 02201 FIT 3310 02201 FI 3310 02201 DI 3310 02201 WY 3310 02201 WI MASS FLOW 3310 02201 DIT 3310 02201 DE 3310 02201 DX 3310 02281 G TE 3310 02281 H TE 3310 02281 G TI 3310 02281 H TI 3310 02281 HS 3310 02281 II 3310 02281 XA C2-3310-PP-101 NOTES: 1. DRAIN SEQUENCE WILL OPEN THE DRAIN VALVE AFTER A SET PERIOD OF INACTIVITY. 2. WILL OPERATE IN ACCORDANCE WITH THE DRAIN PROCEDURE AS DESCRIBED IN THE CONTROL PHILOSOPHY. 3. DIRECT DRAIN LINES TOWARDS AREA SPILLAGE PUMP. 4. IN ADDITION TO THE STANDARD MAINTENANCE DATA, THIS WILL ALSO CAPTURE THE PUMP LIFE VS THE MASS FLOW TROUGH THE PUMP. 5. DELETED 6. CYCLONE FEED PUMP FLOW SWITCHES, PRESSURE SWITCHES AND ISOLATION VALVES TO BE LOCATED ON THE OPERATING LEVEL. 7. SPACE PROVIDED FOR MANUAL SAMPLING. T3 M M T8 3310 02208 XV + 3310 02204 XV + 3310 02205 XV + 1-1/2" 1-1/2" 3310 02203 FE + 2"x1-1/4" 54"x36" 3"x2" 3"x2" TO FLOOR TO FLOOR AFD 3310 02201 FE + FI FI BRG FRONT H, P2 HH,P1 BRG REAR H, P2 HH,P1 H, P2 L, P2 3310 02208 B HS OP/CL L/R 3310 02208 ZS OP/CL 3310 02208 XA NOTE 2 (LAUNDER) BALL MILL SCREEN U/S BALL MILL FEED SCREEN, C2-3310-SC-102 1309 3300-25J-003 BALL MILL SCREEN U/S BALL MILL FEED SCREEN, C2-3310-SC-101 1310 3300-25J-003 BALL MILL NO.1 DISCHARGE BALL MILL NO.1 DISCHARGE LAUNDER, C2-3320-LA-101 1313 3300-25J-023 PROCESS WATER 1314 3900-25J-014 PROCESS WATER 1315 3900-25J-014 PROCESS WATER 1316 3900-25J-014 GRIND. AREA SUMP CONT. TAILING COLLECTION LAUNDER 1317 3700-25J-001 PRIMARY CYCLONE FEED PRIMARY CYCLONE, C2-3330-CS-101 1327 3300-25J-023 FRESH WATER 1329 3310 AP 3310 AP ES 3310-DR- -C1B-4"-N 3310-WR-1480-C1A-8"-N ES ES 3310-SL-1020-R1B-48"-N 3310-DR-1006-C1B-6"-N 3310-WR-1112-C1A-8"-N SIZE: MATERIAL: CAPACITY:290.0 m^3 TRIM:R1B C2-3310-BX-101 BALL MILL CYCLONE FEED SUMP 3310-WF-1350-C1A-1-1/2"-N 3310-WG-1020-C1A-2"-N 3310-DR-1005-C1A-8"-N ES 3310-SL-1016-C1B-20"-N 3310-SL-1015-C1B-2"-N 3310-WR-1102-C1A-4"-N 3310-WR-1103-C1A-8"-N SIZE: MATERIAL: MOTOR: C2-3310-PP-103 GRINDING AREA FLOOR SUBMERSIBLE SUMP PUMP 3310-SL-1019-R1B-54"-N SIZE: MATERIAL: MOTOR: C2-3310-PP-101 PRIMARY CYCLONE FEED PUMP NO. 1 (AFD) AG KM LT ISSUED FOR CLIENT REVIEW 23-Dec-11 B RP ISSUED FOR COMBINED REVIEW 29-Jun-11 A 12/23/2011 K. MUNDY A. GUNSON W. BIE L. TAMELIN 12/22/2011 4:05:06 PM WBS: 3310 B PIPING AND INSTRUMENTATION DIAGRAM BALL MILL FEED 3300-25J-022 PRIMARY CYCLONE FEED SUMP NO. 1 J/SP FAULT 3310 02204 ZS 3310 02205 ZS 3310 02204 XA 3310 02205 XA OP/CL OP/CL MISMATCH FAULT MISMATCH MISMATCH GRIND. AREA SUMP CONT. BALL MILL NO.2 CYCLONE FEED SUMP, C2-3310-BX-201 3290 3300-25J-026 FLOOR SPILL BALL FEEDER AREA SUBMERSIBLE SUMP PUMP, 3264 3300-25J-052 FRESH WATER GRINDING AREA HEAT EXCHANGERS, 3295 3300-25J-054 C2-3240-PP-023/024 3310-WF-1114-C1A-4"-N FRESH WATER 1350 3300-25J-025 3310-SL-1802-C1B-4"-N 3310-WF-1484-C1A-8"-N V V FI C2-3320-PP-043 EFFLUENT ES 3310-WF-1504-C1A-1"-N CRUSHING PLANT COARSE SCREENING EFFLUENT PUMPS, 3523 3300-25J-036 LIME AREA SUMP CONT. LIME PLANT SUMP PUMP, C2-3920-PP-095 2368 3900-25J-012 GLAND SEAL WATER GRINDING AREA SUMP CONTENTS 2944 3900-25J-023 C2-3300-HX-770/771/772 TAILING COLLECTION LAUNDER, C2-3710-LA-001 3927 3700-25J-001 3310-SL- -H0K-48"-N 3310-DR-1016-C1A-8"-N 3310-DR- -C1A-8"-N
  • 110.
    T4 3320 32301 XA 3320 32301 ZS A-R 3320 02301 ZS 3320 02304 FIT 3320 02381 II 3320 02303 FIT 3320 02305 PIC 3320 02381 HS 3320 02302 FIC 3320 02304 FIC 3320 02302 FIT RPS 3320 02305 PIT M 3320 02381 XA M 3320 02303 FIC M TEST REAGENT INJECTOR, C2-3910-ZM-691 13363900-25J-004 PROCESS WATER 1339 3900-25J-014 FROTHER GLYCOL INJECTOR, C2-3910-ZM-671 1342 3900-25J-005 SAMPLER SAFETY SCREEN FLOTATION SAFETY SCREEN, C2-3330-SC-105 1337 3300-25J-025 PROCESS WATER 1340 3900-25J-014 SECONDARY COLLECTOR INJECTOR, C2-3910-ZM-616 1331 3900-25J-002 INJECTOR C2-3910-ZM-671 DENSITY CONTROL, 3330-DIC-02502 1343 3300-25J-025 MILK OF LIME LIME DISTRIBUTOR PUMPS, C2-3920-PP-093/094 1335 3900-25J-012 3330-AIC-02501 GRINDING BALLS BALL MILL TRANSFER CONVEYOR, C2-3320-CV-034 1382 3300-25J-053 CYCLONE O/F BALL MILL NO.1 CYCLONE O/F SAMPLER C2-3330-SA-101 1341 3300-25J-025 MO COLLECTOR INJECTOR, C2-3910-ZM-580 1333 3900-25J-003 BALL MILL DISCHARGE PRIMARY CYCLONE FEED SUMP, C2-3310-BX-101 1313 3300-25J-022 PRIMARY CYCLONE FEED PRIMARY CYCLONE FEED PUMP C2-3310-PP-101 1327 3300-25J-022 PROCESS WATER 1338 3900-25J-014 PRIMARY COLLECTOR INJECTOR, C2-3910-ZM-590 1332 3900-25J-001 C2-3330-SA-101 IN-LINE ANALYZER PH-CONTROL, 1334 3300-25J-025 MISMATCH OP/CL VENDOR DRAWING NO: C2-3300-25J- A-R A-R (QTY 16) NOTE 3 OP/CL NOTE 2 FAULT LAUNDER NOTE 2 NOTE 1 H, P2 L, P2 NOTES: 1. MILL CAPACITY IS BASED ON NEW FEED. 2. SPACE PROVIDED FOR MANUAL SAMPLING 3. HORN FOR START UP. EMERGENCY BALLS FROM BALL BUCKET TOTE BIN NOTE 2 3300-SL-1034-R1A-40"-N 3320 02303 FV + SIZE: C2-3320-SC-107 BAL MILL NO.1 DISCH. TRAMP GRIZZLY 3320 02381 XA + C2-3330-CS-101 ES ES FC FC FC ES FL FI V V 1-1/2"x1/2" C2-3320-ML-101 3320 02302 FV + 16"x14" 14" 3320 02301 AV + 3320 02303 FE + 6" 16"x10" 16"x10" C2-3330-ST-130 3320 32301 XV + 10" C2-3320-LA-101 C2-3320-ST-190 SAMPLE POINT C2-3320-ST-109 C2-3320-ST-120 C2-3330-LA-130 3320 02302 FE + C2-3320-SC-107 3320 02304 FE + 16"x14" C2-3330-LA-107 3320 02304 FV + 3320-WR-1114-C1A-16"-N 3320-WR-1114-C1A-16"-N 3320-WR-1481-C1A-2"-N 3320-RC-1014-C1D-1"-N 3320-WR-1482-C1A-1-1/2"-N 3330-SL-1020-R1A-48"-N SIZE: C2-3330-ST-130 CYCLONE U/F LAUNDER DISCHARGE BOX C2-3320-ST-119 SIZE: C2-3320-ST-119 BALL MILL FEED CHUTE SPARE SIZE: 8.2 m D x 14.6 m EGL MOTOR: 22000.00 kW C2-3320-ML-101 BALL MILL NO. 1 3330-SL-1023-R1B-48"-N 3320-RL-1008-C1B-2"-N SIZE: C2-3320-ST-190 BALL MILL NO.1 TRAMP CHUTE SIZE: C2-3320-ST-109 BALL MILL NO.1 HOOD & CHUTE SIZE: C2-3330-LA-107 PRIMARY CYCLONE OVERFLOW LAUNDER SIZE: C2-3320-LA-101 BALL MILL NO.1 DISCH. LAUNDER 3320-RF-1012-C1D-1"-N SIZE: C2-3330-LA-130 CYCLONE U/F LAUNDER 3320-RL-1022-C1B-2"-N 3320-RC-1093-C1D-1"-N 3320-WR-1113-C1A-16"-N SIZE: C2-3320-ST-120 BALL MILL NO.1 FEED CHUTE 3320-WR-1110-C1A-16"-N SIZE:16 x 840 mm C2-3330-CS-101 PRIMARY CYCLONE CLUSTER 3320-RC-1049-C1D-1"-N 3330-SL-1022-R1B-48"-N 3330-SL-1021-R1A-6"-N 3320-RC-1132-C1D-1"-N D 4 F B A 3 2 1 5 6 8 E 7 C REV. APPROVED CHK. DES. REV. DATE REVISION DESCRIPTION CLIENT LEAD ENGINEER SCALE DRAWING NUMBER CHECK DESIGN CHECK DRAWING DESIGNED BY DRAWN BY APPROVAL DATE APPROVAL DATE APPROVED CHK. DES. REV. DATE REVISION DESCRIPTION REFERENCE DRAWING No. 1:100 0 1:200 5m 10m 0 5m 10m 15m 20m 1:500 10m 0 20m 30m 40m 50m 1:1000 0 100m 50m 1:20 0 0.5m 1m 1.5m 2m 0 1:25 0.5m 1m 1.5m 1:33 1/3 2.5m 2m 0 1m 2m 3m 0 1:50 1m 2m 3m 4m 5m CAD FILE NAME: P:0CAD000SPEM** MODEL UPDATED: DWG. FILE UPDATED: MANUAL CHANGES MADE: YES NO YES NO YES NO PROJECT MANAGER ENGINEERING MANAGER AREA PROJECTENGINEER REFERENCE DRAWINGS SAFETY SHARE: APPROVAL DATE CONTRACT NO. SAFETY SHARE : BA6CVA1.IGR NOTICE: THIS DRAWING HAS NOT BEEN PUBLISHED AND IS THE SOLE PROPERTY OF FLUOR AND IS LENT TO THE BORROWER FOR THEIR CONFIDENTIAL USE ONLY, AND IN CONSIDERATION OF THE LOAN OF THIS DRAWING, THE BORROWER PROMISES AND AGREES TO RETURN IT UPON REQUEST AND AGREES THAT IT WILL NOT BE REPRODUCED, COPIED LENT OR OTHERWISE DISPOSED OF DIRECTLY OR INDIRECTLY, NOR USED FOR ANY OTHER PURPOSE OTHER THAN WHICH IT IS FURNISHED. NONE Apr 2011 240K-C2- AG KM LT ISSUED FOR CLIENT REVIEW 23-Dec-11 B RP ISSUED FOR COMBINED REVIEW 29-Jun-11 A 12/23/2011 K. MUNDY A. GUNSON W. BIE L. TAMELIN 12/23/2011 10:10:08 AM WBS: 3320 B PIPING AND INSTRUMENTATION DIAGRAM BALL MILL CIRCUITS 3300-25J-023 BALL MILL NO. 1 3320 32302 PI 3320 02307 LIC M 3320 02306 FE + 3320 02306 FIT 3320 02306 FQI 3320 02307 LV + 3320 02307 LY FRESH WATER DISTRIBUTION 4135 5100-25J-014 5100-WF- -C1A-24"-N FRESH WATER BALL MILL NO.6 DISC. LAUNDER, C2-3320-LA-601 4128 3300-25J-047 FRESH WATER BALL MILL NO.5 DISC. LAUNDER, C2-3320-LA-501 4130 3300-25J-043 FRESH WATER BALL MILL NO.4 DISC. LAUNDER, C2-3320-LA-401 4126 3300-25J-037 FRESH WATER BALL MILL NO.3 DISC LAUNDER, C2-3320-LA-301 4125 3300-25J-033 FRESH WATER BALL MILL NO.2 DISC. LAUNDER, C2-3320-LA-201 4123 3300-25J-027 3320-WF- -C1A-10"-N V 5100-WF- -C1A-10"-N 4188 3300-25J-047 4202 3300-25J-043 4208 3300-25J-037 4209 3300-25J-033 4215 3300-25J-027 LEVEL PROCESS WATER TANK NO.1 & NO.2, C2-3930-TK-730/731 4250 3900-25J-013 3320-WF- -C1A-10"-N 3320-WF- -C1A-10"-N 3320-WF- -C1A-10"-N 3320-WF- -C1A-10"-N
  • 111.
    P.O NO.: VENDOR DWGNO.: VENDOR: H, P2 HH, P2 L, P2 H, P2 L, P2 H, P2 L, P2 H, P2 LEAK CONTROL P.O NO.: VENDOR DWG NO.: VENDOR: P.O NO.: VENDOR DWG NO.: VENDOR: P.O NO.: VENDOR DWG NO.: VENDOR: P.O NO.: VENDOR DWG NO.: VENDOR: P.O NO.: VENDOR DWG NO.: VENDOR: P.O NO.: VENDOR DWG NO.: VENDOR: ACCUMULATOR PUMP H, P2 H, P2 AIR GAP SENSORS A-H, J LUBE TANK OIL 3320 02403 TE 3320 02403 TI 3320 02405 FISL 3320 02405 FAL 3320 02404 TI 3320 02404 TE 3320 02401 TE 3320 02401 TI 3320 02402 TI 3320 02402 TE 3320 33001 PI 3320 33011 PI 3320 32803 XA 3320 33031 PI 3320 33021 PI 3320 33002 TI 3320 33012 TI H, P2 HH, P2 3320 33003 SI 3320 33013 SI 3320 33023 SI 3320 33033 SI 3320 33022 TI 3320 33032 TI 3320 32804 LAL 3320 32804 LALL 3320 32805 TA 3320 32806 PDAH 3320 32807 ZL 3320 32817 ZL 3320 32816 PDAH 3320 32814 LAL 3320 32815 TA 3320 32814 LALL 3320 32921 SI BEARING SEGMENT #3 3320 32931 SI BEARING SEGMENT #4 3320 32911 SI BEARING SEGMENT #2 3320 32901 SI BEARING SEGMENT #1 3320 32902 PI 3320 32912 PI 3320 32922 PI 3320 32932 PI 3320 32605 TI 3320 32606 LI 3320 32607 PI 3320 32608 CI 3320 32609 TI 3320 32610 TI 3320 32903 TI 3320 32913 TI 3320 32923 TI 3320 32933 TI 3320 32904 TI 3320 32914 TI 3320 32924 TI 3320 32934 TI 3320 32602 LAH 3320 32603 FI 3320 32604 TI 3320 32414 MI A, B 3320 32415 LAH P2 3320 32005 PAL 3320 32008 LALL CIRCULATING OIL 3320 32009 TI 3320 32010 PAL P2 H, P2 LUBE TANK OIL P2 3320 32006 PDI CIRCULATING STAND-BY PUMP CONTROL H, P2 3320 32506 PAL P2 3320 32520 PI 3320 32507 PI 3320 32517 PI 3320 32516 PAL 3320 32509 PAL ACCUMULATOR PUMP CONTROL ACCUMULATOR #2 3320 32523 TI 3320 32519 PAL 3320 32521 FAL 3320 32518 PAL 3320 32522 PDI H, P2 3320 32508 PAL LOW PRESSURE STAND-BY PUMP CONTROL 3320 32523 LA 3320 32007 FAL 3320 32015 PI H, P2 3320 32016 PAL 3320 32017 PAL 3320 32018 PAL L,P2 LL, P2 3320 32019 PAL 3320 32409 ZA 3320 32408 XA 3320 32407 LAH P2 3320 32406 TI 3320 32405 TI 3320 32404 TI 3320 32401 XA 3320 32402 XA 3320 32403 XA 3320 32411 XA 3320 32412 XA 3320 32413 XA 3320 32601 XA 3320 32611 XA 3320 32501 XA 3320 32511 XA 3320 32513 XA 3320 32504 XA 3320 32502 XA 3320 32512 XA 3320 32503 XA 3320 32514 XA 3320 32505 XA 3320 32515 XA 3320 32004 XA 3320 32014 XA 3320 32013 XA 3320 32003 XA 3320 32012 XA 3320 32002 XA 3320 32011 XA 3320 32001 XA 3320 32801 XA 3320 32811 XA BEARING SEGMENT #3 & #4 STAND-BY PUMP CONTROL ACCUMULATOR #1 EXPANSION TANK COOLING WATER PUMPS CIRCULATING WATER P2 MILL BRAKE CONTROLS BEARING SEGMENT #1 & #2 STAND-BY PUMP CONTROL L, P2 H, P2 LL, P2 L, P2 H, P2 CIRCULATING PUMP P2 P2 L, P2 H, P2 P2 P2 P2 P2 LUBE OIL FILTER LOW PRESSURE OIL CIRCULATING OIL CIRCULATING STAND-BY PUMP CONTROL OIL TANK P2 HH, P2 LUBE OIL FILTER P2 OIL TANK BEARING SEGMENT #1 & #2 STAND-BY PUMP CONTROL ACCUMULATOR PUMP CONTROL P2 P2 P2 ACCUMULATOR #1 ACCUMULATOR #2 BEARING SEGMENT #3 & #4 STAND-BY PUMP CONTROL CIRCULATING PUMP L, P2 H, P2 BEARING SEGMENT #2 L, P2 H, P2 BEARING SEGMENT #1 L, P2 H, P2 BEARING SEGMENT #3 BEARING SEGMENT #4 L, P2 H, P2 BEARING SEGMENT #2 BEARING SEGMENT #1 BEARING SEGMENT #1 BEARING SEGMENT #2 BEARING SEGMENT #3 BEARING SEGMENT #4 BEARING SEGMENT #3 BEARING SEGMENT #4 H, P2 HH, P2 H, P2 HH, P2 COOLING WATER OUT L, P2 LL, P2 L, P2 H, P2 HH, P2 COOLANT TO HEAT EXCHANGER COOLANT FROM HEAT EXCHANGER WATER LEAK SENSOR RIGHT L, P2 LL, P2 H, P2 HH, P2 COOLING WATER COOLING WATER IN STATOR WINDING A-F SEALING SYSTEM WEAR A-B COOLING AIR INTAKE A-B COOLING AIR DISCHARGE A-B WATER LEAK SENSOR LEFT H, P2 H, P2 H, P2 H, P2 L, P2 H, P2 L, P2 H, P2 L, P2 H, P2 L, P2 H, P2 L, P2 H, P2 L, P2 H, P2 L, P2 H, P2 L, P2 H, P2 L, P2 H, P2 THRUST BEARING SEGMENT #4 BEARING SEGMENT #4 BEARING SEGMENT #4 THRUST BEARING SEGMENT #3 THRUST BEARING SEGMENT #2 THRUST BEARING SEGMENT #1 BEARING SEGMENT #3 BEARING SEGMENT #2 BEARING SEGMENT #1 BEARING SEGMENT #3 BEARING SEGMENT #2 BEARING SEGMENT #1 MILL NO.1 FIXED BEARING LUBE UNIT MILL NO.1 FLOATING BEARING LUBE UNIT MILL NO.1 FIXED BEARING MILL NO.1 FLOATING BEARING MILL NO.1 MOTOR CONTROL MILL NO.1 CYCLOCONVERTER CONTROL OVERPRESSURE FAN LEFT OVERPRESSURE FAN RIGHT FAN #1 LEFT FAN #1 RIGHT FAN #2 LEFT FAN #2 RIGHT CYCLOCONVERTER COOLING WATER PUMP CYCLOCONVERTER COOLING WATER PUMP (STAND BY) BEARING SEGMENT #1 & #2 LUBE PUMP BEARING SEGMENT #1 & #2 LUBE PUMP (STAND BY) BEARING SEGMENT #3 & #4 LUBE PUMP BEARING SEGMENT #3 & #4 LUBE PUMP (STAND BY) ACCUMULATOR PUMP (STAND-BY) CIRCULATING PUMP CIRCULATING PUMP (STAND-BY) BEARING SEGMENT #1 & #2 LUBE PUMP BEARING SEGMENT #1 & #2 LUBE PUMP (STAND BY) BEARING SEGMENT #3 & #4 LUBE PUMP BEARING SEGMENT #3 & #4 LUBE PUMP (STAND BY) ACCUMULATOR PUMP ACCUMULATOR PUMP (STAND-BY) CIRCULATING PUMP CIRCULATING PUMP (STAND-BY) THRUST BEARING LUBE PUMP THRUST BEARING LUBE PUMP (STAND-BY) AG KM LT ISSUED FOR CLIENT REVIEW 23-Dec-11 B RP ISSUED FOR COMBINED REVIEW 19-Jul-11 A 12/23/2011 K. MUNDY A. GUNSON W. BIE L. TAMELIN 12/23/2011 10:10:56 AM WBS: 3320 B PIPING AND INSTRUMENTATION DIAGRAM BALL MILL CIRCUITS 3300-25J-024 BALL MILL NO. 1 ANCILLARIES 3320-WF-1343-C1A-2"-N 3320-WF-1344-C1A-2"-N 3320-WF-1340-C1A-2"-N 3320-WF-1341-C1A-4"-N 3320-WF-1342-C1A-4"-N 3320-WF-1349-C1A-2"-N V V V V V D 4 F B A 3 2 1 5 6 8 E 7 C REV. APPROVED CHK. DES. REV. DATE REVISION DESCRIPTION CLIENT LEAD ENGINEER SCALE DRAWING NUMBER CHECK DESIGN CHECK DRAWING DESIGNED BY DRAWN BY APPROVAL DATE APPROVAL DATE APPROVED CHK. DES. REV. DATE REVISION DESCRIPTION REFERENCE DRAWING No. 1:100 0 1:200 5m 10m 0 5m 10m 15m 20m 1:500 10m 0 20m 30m 40m 50m 1:1000 0 100m 50m 1:20 0 0.5m 1m 1.5m 2m 0 1:25 0.5m 1m 1.5m 1:33 1/3 2.5m 2m 0 1m 2m 3m 0 1:50 1m 2m 3m 4m 5m CAD FILE NAME: P:0CAD000SPEM** MODEL UPDATED: DWG. FILE UPDATED: MANUAL CHANGES MADE: YES NO YES NO YES NO PROJECT MANAGER ENGINEERING MANAGER AREA PROJECTENGINEER REFERENCE DRAWINGS SAFETY SHARE: APPROVAL DATE CONTRACT NO. SAFETY SHARE : BA6CVA1.IGR NOTICE: THIS DRAWING HAS NOT BEEN PUBLISHED AND IS THE SOLE PROPERTY OF FLUOR AND IS LENT TO THE BORROWER FOR THEIR CONFIDENTIAL USE ONLY, AND IN CONSIDERATION OF THE LOAN OF THIS DRAWING, THE BORROWER PROMISES AND AGREES TO RETURN IT UPON REQUEST AND AGREES THAT IT WILL NOT BE REPRODUCED, COPIED LENT OR OTHERWISE DISPOSED OF DIRECTLY OR INDIRECTLY, NOR USED FOR ANY OTHER PURPOSE OTHER THAN WHICH IT IS FURNISHED. NONE Apr 2011 240K-C2- 3320 32020 XA COMMON ALARM 3320 33010 XA COMMON ALARM 3320 32610 XA COMMON ALARM 3320 32410 XA COMMON ALARM 3320 32525 XA COMMON ALARM 3320 32910 XA COMMON ALARM 3320-WF-1346-C1A-4"-N 3320-WF-1347-C1A-4"-N 3320-WF-1345-C1A-2"-N 3320-WF-1348-C1A-2"-N HH, P1 C2-3320-ML-101 CLOSED LOOP CWR GRINDING AREA HEAT EXCHANGERS, 3865 3300-25J-057 CLOSED LOOP CWR GRINDING AREA HEAT EXCHANGERS, 3866 3300-25J-057 CLOSED LOOP CWR GRINDING AREA HEAT EXCHANGERS, 3867 3300-25J-057 CLOSED LOOP CWR GRINDING AREA HEAT EXCHANGERS, 3868 3300-25J-057 CLOSED LOOP CWR GRINDING AREA HEAT EXCHANGERS, 3869 3300-25J-057 C2-3320-HX-770/771/772 C2-3320-HX-770/771/772 C2-3320-HX-770/771/772 C2-3320-HX-770/771/772 C2-3320-HX-770/771/772 CLOSED LOOP CWS GRINDING COOLING SYSTEM PUMPS, C2-3320-PP-765/766 3950 3300-25J-056 CLOSED LOOP CWS GRINDING COOLING SYSTEM PUMPS, C2-3320-PP-765/766 3951 3300-25J-056 CLOSED LOOP CWS GRINDING COOLING SYSTEM PUMPS, C2-3320-PP-765/766 3952 3300-25J-056 CLOSED LOOP CWS GRINDING COOLING SYSTEM PUMPS, C2-3320-PP-765/766 3953 3300-25J-056 CLOSED LOOP CWS GRINDING COOLING SYSTEM PUMPS, C2-3320-PP-765/766 3954 3300-25J-056
  • 112.
    P.O NO.: VENDOR DWGNO.: VENDOR: P.O NO.: VENDOR DWG NO.: VENDOR: 3330 02501 AIT 3330 02532 XL 3330 02511 AE 3330 02511 AIC 3330 02502 DX 3330 02512 DE 3330 02502 DIT 3330 02532 FALL 3330 02512 DIC 3330 02502 DE 3330 02501 AE 3330 02532 FSH 3330 02501 AIC 3330 02512 DX 3330 02502 DIC 3330 02511 AIT 3330 02512 DIT CYCLONE O/F SAMPLE ROUGHER CELL NO.1 ROW NO.2, C2-3410-CF-201 1352 3400-25J-001 CYCLONE O/F SAMPLE ROUGHER CELL NO.1 ROW NO.1, C2-3410-CF-101 1351 3400-25J-001 PRIMARY CYCLONE O/F FROM PRIMARY CYCLONE O/F LAUNDER C2-3320-LA-107 1341 3300-25J-023 C2-3320-LA-130 LIME CONTROL VALVE, 3320-AV-02301 1334 3300-25J-023 FLOW CONTROL, 3320-FIC-02302 1343 3300-25J-023 PRIMARY CYCLONE O/F ROUGHER CELL NO.1 ROW NO.2, C2-3410-CF-201 1348 3400-25J-001 FRESH WATER 1350 3300-25J-022 PRIMARY CYCLONE O/F ROUGHER CELL NO.1 ROW NO.1, C2-3410-CF-101 1349 3400-25J-001 SAFETY SCREEN DUMP CYCLONE U/F LAUNDER C2-3320-LA-230 1346 3300-25J-027 FLOW CONTROL, 3320-FIC-02702 1353 3300-25J-027 SAFETY SCREEN DUMP CYCLONE U/F LAUNDER C2-3330-LA-130 1337 3300-25J-023 PRIMARY CYCLONE O/F FROM PRIMARY CYCLONE O/F LAUNDER C2-3320-LA-207 1345 3300-25J-027 C2-3320-LA-230 LIME CONTROL VALVE, 3320-AV-02701 1347 3300-25J-027 DOMESTIC WATER 1354 5400-25J-022 VENDOR DWG NO: C2-3300-25J- SHIFT SAMPLE VENDOR DWG NO: C2-3300-25J- 3% SLOPE SHIFT SAMPLE SIZE: C2-3330-AZ-101 GRINDING LINES NO.1 & NO.2 O/F PARTICLE SIZE ANALYZER V C2-3330-SC-105 AG KM LT ISSUED FOR CLIENT REVIEW 23-Dec-11 B RP ISSUED FOR COMBINED REVIEW 29-Jun-11 A 12/23/2011 K. MUNDY A. GUNSON W. BIE L. TAMELIN 12/21/2011 3:43:37 PM WBS: 3330 B PIPING AND INSTRUMENTATION DIAGRAM BALL MILL CLASSIFICATION 3300-25J-025 MILLS NO. 1 & 2 SAMPLING C2-3330-ST-702 SIZE: C2-3330-SA-101 BALL MILL NO.1 CYCLONE O/F SAMPLER C2-3330-SC-205 SIZE: C2-3330-ES-501 CYCLONE AREA SAFETY EYE WASH NO.1 SIZE: C2-3330-SC-105 FLOTATION SAFETY SCREEN NO.1 3330-SL-1031-R1B-48"-N SIZE: C2-3330-ST-701 BALL MILL NO.1 O/F SAMPLER DISCHARGE CHUTE C2-3330-ES-501 C2-3330-ST-701 C2-3330-AZ-101 SIZE: C2-3330-SA-201 BALL MILL NO.2 CYCLONE O/F SAMPLER C2-3330-SA-101 1-1/2"x1/2" SIZE: C2-3330-AZ-102 GRINDING LINES NO.1 & NO.2 O/F IN-STREAM ANALYZER C2-3330-AZ-102 3330 02532 XA + 3320-SL-1033-R1A-40"-N 1-1/2"x1/2" SIZE: C2-3330-SC-205 FLOTATION SAFETY SCREEN NO.2 C2-3330-SA-201 SIZE: C2-3330-ST-702 BALL MILL NO.2 O/F SAMPLER DISCHARGE CHUTE 3330-SL-1030-C1B-4"-N 3330-SL-1025-R1A-4"-N 3330-SL-1032-R1B-48"-N AI 3310-WF-1114-C1A-4"-N 3320-SL-1022-R1B-48"-N 3330-SL-1026-R1A-4"-N 3330-SL-32502-R1A-40"-N 3330-WF-1351-C1A-1-1/2"-N ES ES 3330-SL-1029-C1B-4"-N 3330-SL-1027-R1A-4"-N ES 3320-SL-1024-R1B-48"-N AI 3330-SL-1028-R1A-4"-N 3330-WD-1026-G1A-1-1/2"-N D 4 F B A 3 2 1 5 6 8 E 7 C REV. APPROVED CHK. DES. REV. DATE REVISION DESCRIPTION CLIENT LEAD ENGINEER SCALE DRAWING NUMBER CHECK DESIGN CHECK DRAWING DESIGNED BY DRAWN BY APPROVAL DATE APPROVAL DATE APPROVED CHK. DES. REV. DATE REVISION DESCRIPTION REFERENCE DRAWING No. 1:100 0 1:200 5m 10m 0 5m 10m 15m 20m 1:500 10m 0 20m 30m 40m 50m 1:1000 0 100m 50m 1:20 0 0.5m 1m 1.5m 2m 0 1:25 0.5m 1m 1.5m 1:33 1/3 2.5m 2m 0 1m 2m 3m 0 1:50 1m 2m 3m 4m 5m CAD FILE NAME: P:0CAD000SPEM** MODEL UPDATED: DWG. FILE UPDATED: MANUAL CHANGES MADE: YES NO YES NO YES NO PROJECT MANAGER ENGINEERING MANAGER AREA PROJECTENGINEER REFERENCE DRAWINGS SAFETY SHARE: APPROVAL DATE CONTRACT NO. SAFETY SHARE : BA6CVA1.IGR NOTICE: THIS DRAWING HAS NOT BEEN PUBLISHED AND IS THE SOLE PROPERTY OF FLUOR AND IS LENT TO THE BORROWER FOR THEIR CONFIDENTIAL USE ONLY, AND IN CONSIDERATION OF THE LOAN OF THIS DRAWING, THE BORROWER PROMISES AND AGREES TO RETURN IT UPON REQUEST AND AGREES THAT IT WILL NOT BE REPRODUCED, COPIED LENT OR OTHERWISE DISPOSED OF DIRECTLY OR INDIRECTLY, NOR USED FOR ANY OTHER PURPOSE OTHER THAN WHICH IT IS FURNISHED. NONE Apr 2011 240K-C2- FRESH WATER 3259 3300-25J-026 3 % SLOPE PH PH V V V 3330-WF-1505-G1A-1-1/2"-N 3330 32502 XV + FI 3330 32502 XA MISMATCH V M 3330 32502 HS 3330 32502 ZS ES V3 3330 32501 XV + FI 3330 32501 XA MISMATCH V M 3330 32501 HS 3330 32501 ZS ES V3 ES
  • 113.
    D 4 F B A 3 2 1 5 68 E 7 C REV. APPROVED CHK. DES. REV. DATE REVISION DESCRIPTION CLIENT LEAD ENGINEER SCALE DRAWING NUMBER CHECK DESIGN CHECK DRAWING DESIGNED BY DRAWN BY APPROVAL DATE APPROVAL DATE APPROVED CHK. DES. REV. DATE REVISION DESCRIPTION REFERENCE DRAWING No. 1:100 0 1:200 5m 10m 0 5m 10m 15m 20m 1:500 10m 0 20m 30m 40m 50m 1:1000 0 100m 50m 1:20 0 0.5m 1m 1.5m 2m 0 1:25 0.5m 1m 1.5m 1:33 1/3 2.5m 2m 0 1m 2m 3m 0 1:50 1m 2m 3m 4m 5m CAD FILE NAME: P:0CAD000SPEM** MODEL UPDATED: DWG. FILE UPDATED: MANUAL CHANGES MADE: YES NO YES NO YES NO PROJECT MANAGER ENGINEERING MANAGER AREA PROJECTENGINEER REFERENCE DRAWINGS SAFETY SHARE: APPROVAL DATE CONTRACT NO. SAFETY SHARE : BA6CVA1.IGR NOTICE: THIS DRAWING HAS NOT BEEN PUBLISHED AND IS THE SOLE PROPERTY OF FLUOR AND IS LENT TO THE BORROWER FOR THEIR CONFIDENTIAL USE ONLY, AND IN CONSIDERATION OF THE LOAN OF THIS DRAWING, THE BORROWER PROMISES AND AGREES TO RETURN IT UPON REQUEST AND AGREES THAT IT WILL NOT BE REPRODUCED, COPIED LENT OR OTHERWISE DISPOSED OF DIRECTLY OR INDIRECTLY, NOR USED FOR ANY OTHER PURPOSE OTHER THAN WHICH IT IS FURNISHED. NONE Apr 2011 240K-C2- 3310 02602 LIC 3310 02681 XA L, P2 LL, P1 3310 02603 FI 3310 02603 FIT 3310 02681 II 3310 02681 HS 3"x2" 3"x2" (LAUNDER) 54"x36" 2"x1-1/4" C2-3310-BX-201 3310 02603 FE + 3310 02681 H TI 3310 02681 G TI 3310 02681 H TE AP 3310 02681 G TE AP NOTE 2 36" 3310 02601 DX 3310 02601 DE MISMATCH 3310 02601 DIT MASS FLOW 3310 02601 WI 1-1/2" 3310 02601 WY 1-1/2" 3310 02608 XA 3310 02601 DI M 3310 02601 FI 3310 02601 FIT NOTE 3 OP/CL 3310 02608 ZS M OP/CL L/R MIN 3310 02608 B HS MIN 3310 02605 XV + 3310 02604 XV + 3310 02608 XV + H, P2 L, P2 T3 BRG REAR H, P2 HH,P1 BRG FRONT H, P2 HH,P1 FI NOTES: 1. DRAIN SEQUENCE WILL OPEN THE DRAIN VALVE AFTER A SET PERIOD OF INACTIVITY. 2. WILL OPERATE IN ACCORDANCE WITH THE DRAIN PROCEDURE AS DESCRIBED IN THE CONTROL PHILOSOPHY. 3. DIRECT DRAIN LINES TOWARDS AREA SPILLAGE PUMP. 4. IN ADDITION TO THE STANDARD MAINTENANCE DATA, THIS WILL ALSO CAPTURE THE PUMP LIFE VS THE MASS FLOW TROUGH THE PUMP. 5. DELETED 6. CYCLONE FEED PUMP FLOW SWITCHES, PRESSURE SWITCHES AND ISOLATION VALVES TO BE LOCATED ON 7. SPACE PROVIDED FOR MANUAL SAMPLING. FI NOTE 3 MIN NOTE 7 3310 02601 FE + M NOTE 2 C2-3310-PP-201 AFD TO FLOOR 3310 02602 LI TO FLOOR 3310 02602 LT 3310 02602 LE L, P1 3310 02603 PI 3310 02603 PIT 3310 02607 PI 3310 02606 PI BALL MILL NO.2 DISCHARGE BALL MILL NO.2 DISCHARGE LAUNDER, C2-3320-LA-201 1590 3300-25J-027 BALL MILL SCREEN U/S BALL MILL FEED SCREEN, C2-3310-SC-202 1591 3300-25J-006 BALL MILL SCREEN U/S BAL MILL FEED SCREEN, C2-3310-SC-201 1592 3300-25J-006 PROCESS WATER 1595 3900-25J-014 PROCESS WATER 1601 3900-25J-014 PRIMARY CYCLONE FEED PRIMARY CYCLONE, C2-3330-CS-201 1616 3300-25J-027 ES 3310-SL-1035-C1B-20"-N 3310-WG-1021-C1A-2"-N 3310-SL-1038-R1B-48"-N 3310-WR-1483-C1A-8"-N SIZE: MATERIAL: CAPACITY:220.0 m^3 TRIM:3310-SL-1035-C1B C2-3310-BX-201 BALL MILL CYCLONE FEED SUMP SIZE: MATERIAL: MOTOR: C2-3310-PP-201 PRIMARY CYCLONE FEED PUMP NO. 2 (AFD) 3310-WR-1118-C1A-8"-N 3310-WF-1352-C1A-1-1/2"-N ES 3310-SL-1036-R1B-54"-N 3310-WR-1096-C1A-8"-N ES ES AG KM LT ISSUED FOR CLIENT REVIEW 23-Dec-11 B RP ISSUED FOR COMBINED REVIEW 29-Jun-11 A 12/23/2011 K. MUNDY A. GUNSON W. BIE L. TAMELIN 12/23/2011 10:12:46 AM WBS: 3310 B PIPING AND INSTRUMENTATION DIAGRAM BALL MILL FEED 3300-25J-026 PRIMARY CYCLONE FEED SUMP NO. 2 3310 02605 ZS 3310 02604 ZS 3310 02604 XA 3310 02605 XA OP/CL OP/CL FAULT MISMATCH MISMATCH FRESH WATER GRINDING AREA HEAT EXCHANGERS, 3287 3300-25J-054 C2-3240-PP-023/024 GLAND SEAL WATER 2945 3900-25J-023 FRESH WATER 3259 3300-25J-025 FRESH WATER 3289 3300-25J-032 3310-WF-1114-C1A-4"-N 3310-SL-1803-C1B-4"-N 3310-WF-1485-C1A-8"-N V V EFFLUENT 3310-WF-1113-C1A-1"-N ES CRUSHING PLANT COARSE SCREENING EFFLUENT PUMPS, 3524 3300-25J-036 C2-3300-HX-770/771/772 GRIND. AREA SUMP CONT. 3290 3300-25J-022 3310-DR-1016-C1A-8"-N FI
  • 114.
    T4 VENDOR DWG NO: C2-3300-25J- 3320 32701 XA 3320 02702 FIC 3320 02781 II M 3320 02705 PIC 3320 02781 XA 3320 02702 FIT 3320 02703 FIC M 3320 02705 PIT H,P2 L, P2 3320 02703 FIT 3320 02701 ZS 3320 02704 FIT 3320 02704 FIC 3320 02781 HS M FAULT IN-LINE ANALYZER PH-CONTROL, 1347 3300-25J-025 SAMPLER SAFETY SCREEN FLOTATION SAFETY SCREEN, C2-3330-SC-205 1346 3300-25J-025 FROTHER GLYCOL INJECTOR, C2-3910-ZM-672 1481 3900-25J-005 SECONDARY COLLECTOR INJECTOR, C2-3910-ZM-617 1476 3900-25J-002 PROCESS WATER 1478 3900-25J-014 MILK OF LIME LIME DISTRIBUTION PUMPS, C2-3920-PP-093/094 1471 3900-25J-012 PRIMARY COLLECTOR INJECTOR, C2-3910-ZM-591 1474 3900-25J-001 GRINDING BALLS BALL MILL TRANSFER CONVEYOR, C2-3320-CV-034 1473 3300-25J-053 C2-3330-SA-201 DENSITY CONTROL, 3330-DIC-02512 1353 3300-25J-025 MO COLLECTOR INJECTOR, C2-3910-ZM-581 1472 3900-25J-003 CYCLONE FEED PRIMARY CYCLONE FEED PUMP, C2-3310-PP-201 1475 3300-25J-026 CYCLONE O/F BALL MILL NO.2 CYCLONE O/F SAMPLER C2-3330-SA-201 1345 3300-25J-025 PROCESS WATER 1479 3900-25J-014 TEST REAGENT INJECTOR, C2-3910-ZM-692 1470 3900-25J-004 PROCESS WATER 1480 3900-25J-014 NOTE 2 NOTES: 1. MILL CAPACITY IS BASED ON NEW FEED. 2. SPACE PROVIDED FOR MANUAL SAMPLING 3. HORN FOR START UP. LAUNDER EMERGENCY BALLS FROM BALL BUCKET NOTE 1 NOTE 2 TOTE BIN NOTE 2 OP/CL RSP C2-3320-ML-201 3320 02702 FV + 10" AG KM LT ISSUED FOR CLIENT REVIEW 23-Dec-11 B RP ISSUED FOR COMBINED REVIEW 29-Jun-11 A 12/23/2011 K. MUNDY A. GUNSON W. BIE L. TAMELIN 12/23/2011 10:13:40 AM WBS: 3320 B PIPING AND INSTRUMENTATION DIAGRAM BALL MILL CIRCUITS 3300-25J-027 BALL MILL NO. 2 C2-3330-LA-230 3320 02703 FE + 16"x10" C2-3320-SC-207 SAMPLE POINT C2-3320-LA-201 C2-3330-CS-201 3320 02704 FE + 16"x10" 3320 02702 FE + 6" C2-3330-ST-230 C2-3320-ST-220 3320 02711 XA + C2-3330-LA-207 3320 32701 XV + C2-3320-ST-209 14" 3320 02701 AV + 16"x14" 3320 02703 FV + SIZE: C2-3320-SC-207 BAL MILL NO.2 DISCH. TRAMP GRIZZLY C2-3320-ST-290 1-1/2"x1/2" 3320 02704 FV + 16"x14" SIZE: 8.2 m D x 14.6 m EGL MOTOR: 22000.00 kW C2-3320-ML-201 BALL MIL NO. 2 C2-3320-ME-035 SIZE: C2-3320-ME-035 BALL MILL LINER HANDLER NO.1 3320-RC-1050-C1D-1"-N SIZE:16 x 840 mm C2-3330-CS-201 PRIMARY CYCLONE CLUSTER 3320-WR-1484-C1A-2"-N 3320-WR-1116-C1D-16"-N 3320-WR-1119-C1A-16"-N 3320-RC-1015-C1D-1"-N 3320-RC-1094-C1D-1"-N 3330-SL-1040-R1B-48"-N 3320-RC-1133-C1D-1"-N 3320-WR-1120-C1A-16"-N 3320-RL-1009-C1B-2"-N SIZE: C2-3320-ST-290 BALL MILL NO. 2 TRAMP CHUTE SIZE: C2-3320-LA-201 BALL MILL NO. 2 DISCH. LAUNDER 3320-RF-1013-C1D-1"-N SIZE: C2-3320-ST-209 BALL MILL NO. 2 HOOD & CHUTE 3320-WR-1120-C1A-16"-N 3330-SL-1039-R1A-6"-N SIZE: C2-3330-LA-207 PRIMARY CYCLONE O/F LAUNDER 3310-SL-1038-R1B-48"-N SIZE: C2-3320-ST-220 BALL MILL NO. 2 FEED CHUTE SIZE: C2-3330-LA-230 CYCLONE U/F LAUNDER 3330-SL-1024-R1B-16"-N 3320-RL-1023-C1B-2"-N SIZE: C2-3330-ST-230 CYCLONE U/F LAUNDER DISCHARGE BOX 3320-WR-1485-C1A-1-1/2"-N D 4 F B A 3 2 1 5 6 8 E 7 C REV. APPROVED CHK. DES. REV. DATE REVISION DESCRIPTION CLIENT LEAD ENGINEER SCALE DRAWING NUMBER CHECK DESIGN CHECK DRAWING DESIGNED BY DRAWN BY APPROVAL DATE APPROVAL DATE APPROVED CHK. DES. REV. DATE REVISION DESCRIPTION REFERENCE DRAWING No. 1:100 0 1:200 5m 10m 0 5m 10m 15m 20m 1:500 10m 0 20m 30m 40m 50m 1:1000 0 100m 50m 1:20 0 0.5m 1m 1.5m 2m 0 1:25 0.5m 1m 1.5m 1:33 1/3 2.5m 2m 0 1m 2m 3m 0 1:50 1m 2m 3m 4m 5m CAD FILE NAME: P:0CAD000SPEM** MODEL UPDATED: DWG. FILE UPDATED: MANUAL CHANGES MADE: YES NO YES NO YES NO PROJECT MANAGER ENGINEERING MANAGER AREA PROJECTENGINEER REFERENCE DRAWINGS SAFETY SHARE: APPROVAL DATE CONTRACT NO. SAFETY SHARE : BA6CVA1.IGR NOTICE: THIS DRAWING HAS NOT BEEN PUBLISHED AND IS THE SOLE PROPERTY OF FLUOR AND IS LENT TO THE BORROWER FOR THEIR CONFIDENTIAL USE ONLY, AND IN CONSIDERATION OF THE LOAN OF THIS DRAWING, THE BORROWER PROMISES AND AGREES TO RETURN IT UPON REQUEST AND AGREES THAT IT WILL NOT BE REPRODUCED, COPIED LENT OR OTHERWISE DISPOSED OF DIRECTLY OR INDIRECTLY, NOR USED FOR ANY OTHER PURPOSE OTHER THAN WHICH IT IS FURNISHED. NONE Apr 2011 240K-C2- MISMATCH A-R 3320 32701 ZS OP/CL A-R A-R (QTY 16) BALL MILL DISCHARGE PRIMARY CYCLONE FEED SUMP, C2-3310-BX-201 1616 3300-25J-026 FC ES FC ES FC ES FI V V FC 3330-AIC-02511 3330-SL-1033-R1A-40"-N 3320 32702 PI NOTE 3 FRESH WATER 3320-LV-02307 4123 3300-25J-023 V M 3320 02706 FE + 3320 02706 FIT 3320-FQI-02306 4215 3300-25J-023 3320-WF- -C1A-10"-N
  • 115.
    AG KM LT ISSUED FOR CLIENTREVIEW 23-Dec-11 B RP ISSUED FOR COMBINED REVIEW 19-Jul-11 A 12/23/2011 K. MUNDY A. GUNSON W. BIE L. TAMELIN 12/23/2011 10:14:24 AM WBS: 3320 B PIPING AND INSTRUMENTATION DIAGRAM BALL MILL CIRCUITS 3300-25J-031 BALL MILL NO. 2 ANCILLARIES D 4 F B A 3 2 1 5 6 8 E 7 C REV. APPROVED CHK. DES. REV. DATE REVISION DESCRIPTION CLIENT LEAD ENGINEER SCALE DRAWING NUMBER CHECK DESIGN CHECK DRAWING DESIGNED BY DRAWN BY APPROVAL DATE APPROVAL DATE APPROVED CHK. DES. REV. DATE REVISION DESCRIPTION REFERENCE DRAWING No. 1:100 0 1:200 5m 10m 0 5m 10m 15m 20m 1:500 10m 0 20m 30m 40m 50m 1:1000 0 100m 50m 1:20 0 0.5m 1m 1.5m 2m 0 1:25 0.5m 1m 1.5m 1:33 1/3 2.5m 2m 0 1m 2m 3m 0 1:50 1m 2m 3m 4m 5m CAD FILE NAME: P:0CAD000SPEM** MODEL UPDATED: DWG. FILE UPDATED: MANUAL CHANGES MADE: YES NO YES NO YES NO PROJECT MANAGER ENGINEERING MANAGER AREA PROJECTENGINEER REFERENCE DRAWINGS SAFETY SHARE: APPROVAL DATE CONTRACT NO. SAFETY SHARE : BA6CVA1.IGR NOTICE: THIS DRAWING HAS NOT BEEN PUBLISHED AND IS THE SOLE PROPERTY OF FLUOR AND IS LENT TO THE BORROWER FOR THEIR CONFIDENTIAL USE ONLY, AND IN CONSIDERATION OF THE LOAN OF THIS DRAWING, THE BORROWER PROMISES AND AGREES TO RETURN IT UPON REQUEST AND AGREES THAT IT WILL NOT BE REPRODUCED, COPIED LENT OR OTHERWISE DISPOSED OF DIRECTLY OR INDIRECTLY, NOR USED FOR ANY OTHER PURPOSE OTHER THAN WHICH IT IS FURNISHED. NONE Apr 2011 240K-C2- 3320 32212 TI 3320 33416 PAL BEARING SEGMENT #4 3320 32202 TI H, P2 BEARING SEGMENT #3 THRUST BEARING LUBE PUMP (STAND-BY) 3320 32221 PI 3320 33415 PI L, P2 H, P2 THRUST BEARING LUBE PUMP 3320 32231 PI 3320 33407 FAL BEARING SEGMENT #1 CIRCULATING PUMP (STAND-BY) 3320 33503 XA 3320 33223 LA L, P2 H, P2 CIRCULATING PUMP 3320 32211 PI LOW PRESSURE STAND-BY PUMP CONTROL BEARING SEGMENT #2 ACCUMULATOR PUMP (STAND-BY) 3320 32201 PI 3320 33208 PAL L, P2 H, P2 ACCUMULATOR PUMP P.O NO.: VENDOR DWG NO.: VENDOR: 3320 03102 TE H, P2 CIRCULATING PUMP BEARING SEGMENT #3 & #4 LUBE PUMP (STAND BY) 3320 03102 TI 3320 33222 PDI BEARING SEGMENT #3 & #4 STAND-BY PUMP CONTROL BEARING SEGMENT #3 & #4 LUBE PUMP 3320 03101 TI 3320 33218 PAL ACCUMULATOR #2 BEARING SEGMENT #1 & #2 LUBE PUMP (STAND BY) 3320 03101 TE 3320 33221 FAL ACCUMULATOR #1 BEARING SEGMENT #1 & #2 LUBE PUMP 3320 03104 TE 3320 33219 PAL P2 CIRCULATING PUMP (STAND-BY) 3320 03104 TI 3320 33223 TI P2 CIRCULATING PUMP 3320 03105 FAL ACCUMULATOR #2 P2 ACCUMULATOR PUMP (STAND-BY) 3320 03105 FISL ACCUMULATOR PUMP CONTROL ACCUMULATOR PUMP CONTROL BEARING SEGMENT #3 & #4 LUBE PUMP (STAND BY) 3320 03103 TI 3320 33209 PAL BEARING SEGMENT #1 & #2 STAND-BY PUMP CONTROL BEARING SEGMENT #3 & #4 LUBE PUMP 3320 03103 TE 3320 33216 PAL OIL TANK BEARING SEGMENT #1 & #2 LUBE PUMP (STAND BY) LUBE TANK OIL 3320 33217 PI P2 BEARING SEGMENT #1 & #2 LUBE PUMP AIR GAP SENSORS A-H, J 3320 33207 PI LUBE OIL FILTER CYCLOCONVERTER COOLING WATER PUMP (STAND BY) H, P2 3320 33220 PI HH, P2 CYCLOCONVERTER COOLING WATER PUMP H, P2 P2 P2 FAN #2 RIGHT 3320 33206 PAL OIL TANK FAN #2 LEFT ACCUMULATOR PUMP H, P2 CIRCULATING STAND-BY PUMP CONTROL FAN #1 RIGHT CIRCULATING STAND-BY PUMP CONTROL CIRCULATING OIL FAN #1 LEFT COMMON ALARM 3320 33406 PDI LOW PRESSURE OIL OVERPRESSURE FAN RIGHT P2 LUBE OIL FILTER OVERPRESSURE FAN LEFT LUBE TANK OIL P2 MILL NO.2 CYCLOCONVERTER CONTROL 3320 33420 XA COMMON ALARM LEAK CONTROL H, P2 P2 MILL NO.2 MOTOR CONTROL 3320 33225 XA P2 P2 MILL NO.2 FLOATING BEARING 3320 33410 PAL P2 MILL NO.2 FIXED BEARING 3320 33409 TI H, P2 MILL NO.2 FLOATING BEARING LUBE UNIT CIRCULATING OIL L, P2 MILL NO.2 FIXED BEARING LUBE UNIT 3320 33408 LALL P2 BEARING SEGMENT #1 3320 33405 PAL P2 BEARING SEGMENT #2 P2 CIRCULATING PUMP BEARING SEGMENT #3 3320 33115 LAH L, P2 H, P2 BEARING SEGMENT #1 3320-WF-1361-C1A-2"-N A, B L, P2 H, P2 LL, P2 BEARING SEGMENT #2 3320-WF-1358-C1A-2"-N 3320 33114 MI BEARING SEGMENT #1 & #2 STAND-BY PUMP CONTROL BEARING SEGMENT #3 3320-WF-1360-C1A-4"-N 3320 32104 TI MILL BRAKE CONTROLS THRUST BEARING SEGMENT #1 3320-WF-1359-C1A-4"-N 3320 32103 FI P2 THRUST BEARING SEGMENT #2 3320 32102 LAH CIRCULATING WATER THRUST BEARING SEGMENT #3 3320 33634 TI COOLING WATER PUMPS BEARING SEGMENT #4 3320 33624 TI EXPANSION TANK BEARING SEGMENT #4 3320 33614 TI ACCUMULATOR #1 THRUST BEARING SEGMENT #4 3320 33604 TI BEARING SEGMENT #3 & #4 STAND-BY PUMP CONTROL L, P2 H, P2 3320 33633 TI 3320 33511 XA L, P2 H, P2 3320 33623 TI 3320 33501 XA L, P2 H, P2 3320 33613 TI 3320 33401 XA L, P2 H, P2 3320 33603 TI 3320 33411 XA L, P2 H, P2 3320 32110 TI 3320 33402 XA L, P2 H, P2 3320 32109 TI 3320 33412 XA L, P2 H, P2 COMMON ALARM 3320 32108 CI 3320 33403 XA L, P2 H, P2 3320 33110 XA 3320 32107 PI 3320 33413 XA L, P2 H, P2 3320 32106 LI 3320 33414 XA H, P2 3320 32105 TI 3320 33404 XA H, P2 3320 33632 PI 3320 33215 XA H, P2 3320 33622 PI 3320 33205 XA H, P2 3320 33612 PI 3320 33214 XA WATER LEAK SENSOR LEFT 3320 33602 PI 3320 33203 XA COOLING AIR DISCHARGE A-B BEARING SEGMENT #1 3320 33212 XA COOLING AIR INTAKE A-B 3320 33601 SI 3320 33202 XA SEALING SYSTEM WEAR A-B BEARING SEGMENT #2 3320 33204 XA STATOR WINDING A-F 3320 33611 SI 3320 33213 XA COOLING WATER IN BEARING SEGMENT #4 3320 33211 XA COOLING WATER 3320 33631 SI 3320 33201 XA H, P2 HH, P2 COMMON ALARM BEARING SEGMENT #3 3320 32111 XA L, P2 LL, P2 3320 32110 XA 3320 33621 SI 3320 32101 XA WATER LEAK SENSOR RIGHT 3320 33514 LALL 3320 33113 XA COOLANT FROM HEAT EXCHANGER 3320 33515 TA 3320 33112 XA COOLANT TO HEAT EXCHANGER V 3320 33514 LAL 3320 33111 XA H, P2 HH, P2 V 3320 33516 PDAH 3320 33103 XA L, P2 V 3320 33517 ZL 3320 33102 XA L, P2 LL, P2 V 3320 33507 ZL 3320 33101 XA COOLING WATER OUT V 3320 33506 PDAH 3320 33104 TI H, P2 HH, P2 3320 33505 TA P.O NO.: VENDOR DWG NO.: VENDOR: 3320 33105 TI H, P2 HH, P2 3320 33504 LALL 3320 33106 TI BEARING SEGMENT #4 P.O NO.: VENDOR DWG NO.: VENDOR: 3320 33504 LAL P2 BEARING SEGMENT #3 3320 32232 TI 3320 33107 LAH BEARING SEGMENT #4 P.O NO.: VENDOR DWG NO.: VENDOR: 3320 32222 TI 3320 33108 XA BEARING SEGMENT #3 3320-WF-1362-C1A-2"-N 3320 32233 SI 3320 33109 ZA BEARING SEGMENT #2 3320-WF-1355-C1A-4"-N P.O NO.: VENDOR DWG NO.: VENDOR: 3320 32223 SI 3320 33419 PAL BEARING SEGMENT #1 3320-WF-1354-C1A-4"-N 3320 32213 SI L,P2 LL, P2 BEARING SEGMENT #1 3320-WF-1353-C1A-2"-N COMMON ALARM COMMON ALARM P.O NO.: VENDOR DWG NO.: VENDOR: 3320 32203 SI 3320 33418 PAL BEARING SEGMENT #2 3320-WF-1357-C1A-2"-N 3320 32210 XA 3320 33610 XA H, P2 HH, P2 3320 33417 PAL L, P2 H, P2 3320-WF-1356-C1A-2"-N P.O NO.: VENDOR DWG NO.: VENDOR: L, P2 H, P2 L, P2 H, P2 L, P2 H, P2 L, P2 H, P2 HH, P1 C2-3320-ML-201 CLOSED LOOP CWR GRINDING AREA HEAT EXCHANGERS, 3870 3300-25J-057 CLOSED LOOP CWR GRINDING AREA HEAT EXCHANGERS, 3871 3300-25J-057 CLOSED LOOP CWR GRINDING AREA HEAT EXCHANGERS, 3874 3300-25J-057 CLOSED LOOP CWR GRINDING AREA HEAT EXCHANGERS, 3872 3300-25J-057 CLOSED LOOP CWR GRINDING AREA HEAT EXCHANGERS, 3873 3300-25J-057 C2-3320-HX-770/771/772 C2-3320-HX-770/771/772 C2-3320-HX-770/771/772 C2-3320-HX-770/771/772 C2-3320-HX-770/771/772 CLOSED LOOP CWS GRINDING COOLING SYSTEM PUMPS, C2-3320-PP-765/766 3959 3300-25J-056 CLOSED LOOP CWS GRINDING COOLING SYSTEM PUMPS, C2-3320-PP-765/766 3957 3300-25J-056 CLOSED LOOP CWS GRINDING COOLING SYSTEM PUMPS, C2-3320-PP-765/766 3958 3300-25J-056 CLOSED LOOP CWS GRINDING COOLING SYSTEM PUMPS, C2-3320-PP-765/766 3955 3300-25J-056 CLOSED LOOP CWS GRINDING COOLING SYSTEM PUMPS, C2-3320-PP-765/766 3956 3300-25J-056
  • 116.
    T3 3310 03204 XA OP/CL 3310 03281 G TI BRG FRONT H, P2 HH,P1 3310 03201 DE AP 3310 03202 LI 3310 03205 ZS3310 03201 FIT 3310 03201 DIT 3310 03203 PI L, P1 3310 03203 FIT M 3310 03202 LT 3310 03203 PIT 3310 03201 DI 3310 03281 HS 3310 03201 WY 3310 03281 XA 3310 03208 ZS 3310 03202 LIC AP M 3310 03208 B HS OP/CL L/R 3310 03207 PI 3310 03201 DX 3310 03208 XA 3310 03281 H TI 3310 03204 ZS 3310 03281 H TE 3310 03205 XA 3310 03206 PI 3310 03281 G TE 3310 03201 FI 3310 03281 II 3310 03201 WI 3310 03203 FI L, P2 LL, P1 M 3310 03202 LE PROCESS WATER 1624 3900-25J-014 PRIMARY CYCLONE FEED PRIMARY CYCLONE, C2-3330-CS-301 1639 3300-25J-033 BALL MILL SCREEN U/S BALL MILL FEED SCREEN, C2-3310-SC-302 1621 3300-25J-009 PROCESS WATER 1629 3900-25J-014 BALL MILL NO.3 DISCHARGE BALL MILL NO.3 DISCHARGE LAUNDER, C2-3320-LA-301 1619 3300-25J-033 BALL MILL SCREEN U/S BALL MILL FEED SCREEN, C2-3310-SC-301 1620 3300-25J-009 OP/CL MISMATCH MISMATCH MIN NOTE 3 FAULT H, P2 L, P2 OP/CL NOTE 7 MIN (LAUNDER) AFD MASS FLOW NOTE 2 NOTE 3 BRG REAR H, P2 HH,P1 NOTES: 1. DRAIN SEQUENCE WILL OPEN THE DRAIN VALVE AFTER A SET PERIOD OF INACTIVITY. 2. WILL OPERATE IN ACCORDANCE WITH THE DRAIN PROCEDURE AS DESCRIBED IN THE CONTROL PHILOSOPHY. 3. DIRECT DRAIN LINES TOWARDS AREA SPILLAGE PUMP. 4. IN ADDITION TO THE STANDARD MAINTENANCE DATA, THIS WILL ALSO CAPTURE THE PUMP LIFE VS THE MASS FLOW TROUGH THE PUMP. 5. DELETED 6. CYCLONE FEED PUMP FLOW SWITCHES, PRESSURE SWITCHES AND ISOLATION VALVES TO BE LOCATED ON THE OPERATING LEVEL. 7. SPACE PROVIDED FOR MANUAL SAMPLING. NOTE 2 MISMATCH MIN FI FI AG KM LT ISSUED FOR CLIENT REVIEW 23-Dec-11 B RP ISSUED FOR COMBINED REVIEW 29-Jun-11 A 12/23/2011 K. MUNDY A. GUNSON W. BIE L. TAMELIN 12/21/2011 3:17:00 PM WBS: 3310 B PIPING AND INSTRUMENTATION DIAGRAM BALL MILL FEED 3300-25J-032 PRIMARY CYCLONE FEED SUMP NO. 3 TO FLOOR 36" C2-3310-PP-301 1-1/2" C2-3310-BX-301 3310 03201 FE + 3"x2" 54"x36" 3310 03203 FE + 3310 03205 XV + 3310 03208 XV + 3"x2" 2"x1-1/4" 3310 03204 XV + 1-1/2" 3310-WF-1363-C1A-1-1/2"-N ES 3310-SL-1044-R1B-48"-N ES TO FLOOR 3310-SL-1042-R1B-54"-N ES 3310-WR-1090-C1A-8"-N 3310-WR-1486-C1A-8"-N 3310-WG-1022-C1A-2"-N SIZE: MATERIAL: CAPACITY:220.0 m^3 TRIM:3310-SL-1041-C1B C2-3310-BX-301 BALL MILL CYCLONE FEED SUMP 3310-WR-1123-C1A-8"-N ES SIZE: MATERIAL: MOTOR: C2-3310-PP-301 PRIMARY CYCLONE FEED PUMP NO.3 (AFD) D 4 F B A 3 2 1 5 6 8 E 7 C REV. APPROVED CHK. DES. REV. DATE REVISION DESCRIPTION CLIENT LEAD ENGINEER SCALE DRAWING NUMBER CHECK DESIGN CHECK DRAWING DESIGNED BY DRAWN BY APPROVAL DATE APPROVAL DATE APPROVED CHK. DES. REV. DATE REVISION DESCRIPTION REFERENCE DRAWING No. 1:100 0 1:200 5m 10m 0 5m 10m 15m 20m 1:500 10m 0 20m 30m 40m 50m 1:1000 0 100m 50m 1:20 0 0.5m 1m 1.5m 2m 0 1:25 0.5m 1m 1.5m 1:33 1/3 2.5m 2m 0 1m 2m 3m 0 1:50 1m 2m 3m 4m 5m CAD FILE NAME: P:0CAD000SPEM** MODEL UPDATED: DWG. FILE UPDATED: MANUAL CHANGES MADE: YES NO YES NO YES NO PROJECT MANAGER ENGINEERING MANAGER AREA PROJECTENGINEER REFERENCE DRAWINGS SAFETY SHARE: APPROVAL DATE CONTRACT NO. SAFETY SHARE : BA6CVA1.IGR NOTICE: THIS DRAWING HAS NOT BEEN PUBLISHED AND IS THE SOLE PROPERTY OF FLUOR AND IS LENT TO THE BORROWER FOR THEIR CONFIDENTIAL USE ONLY, AND IN CONSIDERATION OF THE LOAN OF THIS DRAWING, THE BORROWER PROMISES AND AGREES TO RETURN IT UPON REQUEST AND AGREES THAT IT WILL NOT BE REPRODUCED, COPIED LENT OR OTHERWISE DISPOSED OF DIRECTLY OR INDIRECTLY, NOR USED FOR ANY OTHER PURPOSE OTHER THAN WHICH IT IS FURNISHED. NONE Apr 2011 240K-C2- GLAND SEAL WATER 2946 3900-25J-023 FRESH WATER 2153 3300-25J-035 3310-SL-1804-C1B-4"-N 3310-WF-1486-C1A-8"-N 3310-WF-1114-C1A-8"-N FRESH WATER GRINDING AREA HEAT EXCHANGERS, 3278 3300-25J-054 FI V V C2-3240-PP-023/024 EFFLUENT ES 3310-WF-1112-C1A-1"-N FRESH WATER 3289 3300-25J-026 CRUSHING PLANT COARSE SCREENING EFFLUENT PUMPS, 3525 3300-25J-036 3310-WF-1114-C1A-8"-N C2-3300-HX-770/771/772
  • 117.
    T4 3320 33301 XA 3320 33301 ZS OP/CL 3320 03301 ZS M 3320 03303 FIC 3320 03381 HS 3320 03381 II 3320 03381 XA 3320 03304 FIC 3320 03305 PIC 3320 03305 PIT 3320 03304 FIT M M 3320 03303 FIT 3320 03302 FIC 3320 03302 FIT IN-LINE ANALYZER PH-CONTROL, 1502 3300-25J-035 PRIMARYCYCLONE O/F BALL MILL NO.1 CYCLONE O/F SAMPLER, C2-3330-SA-301 1498 3300-25J-035 CYCLONE FEED PRIMARY CYCLONE FEED PUMP C2-3310-PP-301 1500 3300-25J-032 PROCESS WATER 1496 3900-25J-014 PROCESS WATER 1494 3900-25J-014 FROTHER GLYCOL INJECTOR, C2-3910-ZM-673 1497 3900-25J-005 MILK OF LIME LIME DISTRIBUTION PUMPS, C2-3920-PP-093/094 1491 3900-25J-012 PRIMARY COLLECTOR INJECTOR, C2-3910-ZM-592 1489 3900-25J-001 GRINDING BALLS BAL MILL TRANSFER CONVEYOR, C2-3320-CV-034 1501 3300-25J-053 SECONDARY COLLECTOR INJECTOR, C2-3910-ZM-618 1488 3900-25J-002 TEST REAGENT INJECTOR, C2-3910-ZM-693 1492 3900-25J-004 SAMPLER SAFETY SCREEN FLOTATION SAFETY SCREEN, C2-3330-SC-305 1493 3300-25J-035 BALL MILL DISCHARGE PRIMARY CYCLONE FEED SUMP, C2-3310-BX-301 1619 3300-25J-032 DENSITY CONTROL, 3330-DIC-03502 1503 3300-25J-035 PROCESS WATER 1495 3900-25J-014 MO COLLECTOR INJECTOR, C2-3910-ZM-582 1490 3900-25J-003 NOTE 3 MISMATCH A-R A-R A-R (QTY 16) RSP DWG NO OP/CL 3330-AIC-03501 FAULT NOTE 2 LAUNDER VENDOR TOTE BIN H, P2 L, P2 NOTE 2 EMERGENCY BALLS FROM BALL BUCKET NOTE 1 NOTES: 1. MILL CAPACITY IS BASED ON NEW FEED. 2. SPACE PROVIDED FOR MANUAL SAMPLING 3. HORN FOR START UP. NOTE 2 3320-SL-1057-R1A-40"-N 16"x10" 14" AG KM LT ISSUED FOR CLIENT REVIEW 23-Dec-11 B RP ISSUED FOR COMBINED REVIEW 29-Jun-11 A 12/23/2011 K. MUNDY A. GUNSON W. BIE L. TAMELIN 12/22/2011 4:42:31 PM WBS: 3320 B PIPING AND INSTRUMENTATION DIAGRAM BALL MILL CIRCUITS 3300-25J-033 BALL MILL NO. 3 3320 03302 FV + 3320 03301 AV + SIZE: C2-3320-SC-307 BAL MILL NO. 3 DISCH. TRAMP GRIZZLY C2-3330-ST-330 ES FC FC ES FC ES 10" C2-3320-ML-301 FI V V FC C2-3320-ST-320 16"x14" SAMPLE POINT C2-3330-LA-307 3320 03304 FE + 3320 33301 XV + 3320 03311 XA + 16"x10" C2-3320-SC-307 6" C2-3330-CS-301 3320 03302 FE + C2-3330-LA-330 C2-3320-ST-390 3320 03304 FV + 16"x14" 1-1/2"x1/2" C2-3320-LA-301 3320 03303 FE + C2-3320-ST-309 3320 03303 FV + SIZE: C2-3320-ME-036 BALL MILL LINER HANDLER NO.2 C2-3320-ME-036 SIZE: 8.2 m D x 14.6 m EGL MOTOR: 22.00 kW C2-3320-ML-301 BALL MILL NO. 3 SIZE: C2-3330-ST-330 CYCLONE U/F LAUNDER DISCHARGE BOX 3320-RC-1016-C1D-1"-N 3320-RC-1095-C1D-1"-N 3320-WR-1124-C1D-16"-N 3320-RL-1010-C1B-2"-N 3320-WR-1487-C1A-2"-N SIZE: C2-3320-ST-309 BALL MILL NO. 3 HOOD & CHUTE 3330-SL-1048-R1B-48"-N 3330-SL-1047-R1B-16"-N 3320-RF-1014-C1D-1"-N SIZE: C2-3330-LA-330 CYCLONE U/F LAUNDER SIZE: C2-3320-ST-390 BALL MILL NO. 3 TRAMP CHUTE 3310-SL-1044-R1B-48"-N 3320-WR-1121-C1A-16"-N SIZE: C2-3320-ST-320 BALL MILL NO. 3 FEED CHUTE 3320-WR-1488-C1A-1-1/2"-N 3330-SL-1046-R1A-6"-N 3320-WR-1125-C1A-16"-N SIZE: C2-3320-LA-301 BALL MILL NO. 3 DISCH. LAUNDER 3320-RL-1024-C1B-2"-N SIZE:16 x 840 mm C2-3330-CS-301 PRIMARY CYCLONE CLUSTER SIZE: C2-3330-LA-307 PRIMARY CYCLONE O/F LAUNDER 3320-RC-1051-C1D-1"-N 3320-WR-1125-C1A-16"-N 3320-RC-1134-C1D-1"-N D 4 F B A 3 2 1 5 6 8 E 7 C REV. APPROVED CHK. DES. REV. DATE REVISION DESCRIPTION CLIENT LEAD ENGINEER SCALE DRAWING NUMBER CHECK DESIGN CHECK DRAWING DESIGNED BY DRAWN BY APPROVAL DATE APPROVAL DATE APPROVED CHK. DES. REV. DATE REVISION DESCRIPTION REFERENCE DRAWING No. 1:100 0 1:200 5m 10m 0 5m 10m 15m 20m 1:500 10m 0 20m 30m 40m 50m 1:1000 0 100m 50m 1:20 0 0.5m 1m 1.5m 2m 0 1:25 0.5m 1m 1.5m 1:33 1/3 2.5m 2m 0 1m 2m 3m 0 1:50 1m 2m 3m 4m 5m CAD FILE NAME: P:0CAD000SPEM** MODEL UPDATED: DWG. FILE UPDATED: MANUAL CHANGES MADE: YES NO YES NO YES NO PROJECT MANAGER ENGINEERING MANAGER AREA PROJECTENGINEER REFERENCE DRAWINGS SAFETY SHARE: APPROVAL DATE CONTRACT NO. SAFETY SHARE : BA6CVA1.IGR NOTICE: THIS DRAWING HAS NOT BEEN PUBLISHED AND IS THE SOLE PROPERTY OF FLUOR AND IS LENT TO THE BORROWER FOR THEIR CONFIDENTIAL USE ONLY, AND IN CONSIDERATION OF THE LOAN OF THIS DRAWING, THE BORROWER PROMISES AND AGREES TO RETURN IT UPON REQUEST AND AGREES THAT IT WILL NOT BE REPRODUCED, COPIED LENT OR OTHERWISE DISPOSED OF DIRECTLY OR INDIRECTLY, NOR USED FOR ANY OTHER PURPOSE OTHER THAN WHICH IT IS FURNISHED. NONE Apr 2011 240K-C2- FRESH WATER 3320-LV-02307 4125 3300-25J-023 3320 33302 PI V M 3320-WF- -C1A-10"-N 3320 03306 FE + 3320 03306 FIT 3320-FQI-02306 4209 3300-25J-023
  • 118.
    ACCUMULATOR PUMP P.O NO.: VENDOR DWGNO.: VENDOR: P.O NO.: VENDOR DWG NO.: VENDOR: P.O NO.: VENDOR DWG NO.: VENDOR: P.O NO.: VENDOR DWG NO.: VENDOR: P.O NO.: VENDOR DWG NO.: VENDOR: P.O NO.: VENDOR DWG NO.: VENDOR: P.O NO.: VENDOR DWG NO.: VENDOR: 3320 36313 TI 3320 33913 XA 3320 33901 XA 3320 34007 PI COOLING WATER PUMPS 3320 33807 LAH P2 3320 34421 PI 3320 34211 XA 3320 33906 PAL P2 3320 33918 PAL 3320 36333 TI 3320 34412 TI H, P2 HH, P2 3320 34215 TA 3320 03405 FAL 3320 36324 TI 3320 33920 PI 3320 33904 XA 3320 34403 SI 3320 33912 XA 3320 33405 PAL 3320 34119 PAL 3320 34111 XA 3320 34201 XA 3320 33801 XA 3320 34109 TI 3320 34214 LALL 3320 33813 XA 3320 34006 LI 3320 34113 XA 3320 34431 PI 3320 03405 FISL 3320 34214 LAL 3320 34204 LALL 3320 33911 XA 3320 34011 XA 3320 34217 ZL 3320 36303 TI 3320 36331 SI BEARING SEGMENT #4 3320 33903 XA 3320 33907 PI 3320 34009 TI COOLANT TO HEAT EXCHANGER 3320 33902 XA 3320 34413 SI 3320 03404 TE 3320 33809 ZA 3320 34110 PAL H, P2 LUBE TANK OIL 3320 34107 FAL 3320 03401 TI 3320 34411 PI 3320 34112 XA 3320 33814 MI A, B 3320 34003 FI 3320 33916 PAL 3320 36301 SI BEARING SEGMENT #1 3320 34010 XA COMMON ALARM 3320 33905 XA 3320 33804 TI 3320 36322 PI 3320 34114 XA 3320 34207 ZL 3320 03402 TI 3320 34001 XA 3320 36321 SI BEARING SEGMENT #3 3320 34216 PDAH 3320 36332 PI 3320 33805 TI 3320 34432 TI 3320 33811 XA 3320 33908 PAL LOW PRESSURE STAND-BY PUMP CONTROL 3320 03402 TE 3320 33812 XA 3320 34204 LAL 3320 34005 TI 3320 03403 TI 3320 34103 XA 3320 34120 XA 3320 33919 PAL 3320 34433 SI 3320 34401 PI 3320 34203 XA 3320 34205 TA 3320 33914 XA 3320 34010 TI COOLANT FROM HEAT EXCHANGER 3320 34002 LAH 3320 34004 TI 3320 34104 XA 3320 34206 PDAH 3320 33810 XA COMMON ALARM 3320 36312 PI 3320 33923 TI 3320 33923 LA 3320 36302 PI 3320 33915 XA 3320 34117 PAL 3320 33917 PI 3320 03403 TE 3320 36334 TI 3320 36314 TI 3320 34116 PAL 3320 33909 PAL ACCUMULATOR #2 ACCUMULATOR PUMP CONTROL 3320 03401 TE 3320 34008 CI 3320 34423 SI 3320 34422 TI 3320 33808 XA 3320 34402 TI 3320 34106 PDI CIRCULATING STAND-BY PUMP CONTROL H, P2 3320 33806 TI 3320 33922 PDI 3320 03404 TI 3320 33921 FAL 3320 33803 XA 3320 34115 PI H, P2 3320 36323 TI 3320 36304 TI 3320 33815 LAH 3320 34118 PAL L,P2 LL, P2 3320 34102 XA 3320 36310 XA COMMON ALARM 3320 33925 XA COMMON ALARM 3320 34108 LALL CIRCULATING OIL 3320 34410 XA COMMON ALARM 3320 36311 SI BEARING SEGMENT #2 3320 33802 XA 3320 34101 XA CLOSED LOOP CWR GRINDING AREA HEAT EXCHANGERS, 3879 3300-25J-057 C2-3320-HX-770/771/772 CLOSED LOOP CWR GRINDING AREA HEAT EXCHANGERS, 3875 3300-25J-057 CLOSED LOOP CWR GRINDING AREA HEAT EXCHANGERS, 3876 3300-25J-057 CLOSED LOOP CWR GRINDING AREA HEAT EXCHANGERS, 3877 3300-25J-057 CLOSED LOOP CWR GRINDING AREA HEAT EXCHANGERS, 3878 3300-25J-057 C2-3320-HX-770/771/772 CLOSED LOOP CWS GRINDING COOLING SYSTEM PUMPS, C2-3320-PP-765/766 3944 3300-25J-056 COOLING WATER SUPPLY GRINDING COOLING SYSTEM PUMPS, C2-3320-PP-765/766 3940 3300-25J-056 CLOSED LOOP CWS GRINDING COOLING SYSTEM PUMPS, C2-3320-PP-765/766 3941 3300-25J-056 CLOSED LOOP CWS GRINDING COOLING SYSTEM PUMPS, C2-3320-PP-765/766 3942 3300-25J-056 CLOSED LOOP CWS GRINDING COOLING SYSTEM PUMPS, C2-3320-PP-765/766 3943 3300-25J-056 THRUST BEARING SEGMENT #2 CIRCULATING PUMP COOLING AIR INTAKE A-B MILL NO.3 FIXED BEARING LUBE UNIT CIRCULATING WATER OVERPRESSURE FAN LEFT MILL NO.3 MOTOR CONTROL P2 P2 FAN #1 RIGHT P2 L, P2 H, P2 AIR GAP SENSORS A-H, J L, P2 H, P2 BEARING SEGMENT #2 H, P2 CIRCULATING PUMP BEARING SEGMENT #4 THRUST BEARING SEGMENT #1 L, P2 H, P2 EXPANSION TANK OIL TANK P2 P2 L, P2 H, P2 BEARING SEGMENT #1 & #2 STAND-BY PUMP CONTROL BEARING SEGMENT #1 MILL NO.3 FLOATING BEARING THRUST BEARING LUBE PUMP MILL NO.3 CYCLOCONVERTER CONTROL L, P2 H, P2 H, P2 HH, P2 LUBE OIL FILTER BEARING SEGMENT #1 & #2 LUBE PUMP (STAND BY) BEARING SEGMENT #2 BEARING SEGMENT #1 L, P2 H, P2 BEARING SEGMENT #4 ACCUMULATOR #2 CYCLOCONVERTER COOLING WATER PUMP H, P2 HH, P2 LUBE TANK OIL THRUST BEARING LUBE PUMP (STAND-BY) H, P2 FAN #1 LEFT MILL BRAKE CONTROLS LUBE OIL FILTER BEARING SEGMENT #3 & #4 STAND-BY PUMP CONTROL BEARING SEGMENT #1 & #2 STAND-BY PUMP CONTROL H, P2 HH, P2 SEALING SYSTEM WEAR A-B H, P2 BEARING SEGMENT #3 & #4 LUBE PUMP (STAND BY) BEARING SEGMENT #1 & #2 LUBE PUMP (STAND BY) COMMON ALARM BEARING SEGMENT #1 L, P2 H, P2 CIRCULATING PUMP WATER LEAK SENSOR RIGHT CIRCULATING PUMP (STAND-BY) L, P2 H, P2 HH, P2 L, P2 H, P2 P2 L, P2 H, P2 LL, P2 COOLING WATER OUT CIRCULATING PUMP (STAND-BY) P2 P2 BEARING SEGMENT #2 CIRCULATING PUMP P2 H, P2 BEARING SEGMENT #3 CIRCULATING OIL P2 THRUST BEARING SEGMENT #4 FAN #2 RIGHT H, P2 MILL NO.3 FLOATING BEARING LUBE UNIT BEARING SEGMENT #3 & #4 LUBE PUMP BEARING SEGMENT #3 LOW PRESSURE OIL ACCUMULATOR #1 BEARING SEGMENT #1 & #2 LUBE PUMP CYCLOCONVERTER COOLING WATER PUMP (STAND BY) P2 L, P2 H, P2 BEARING SEGMENT #3 BEARING SEGMENT #3 & #4 STAND-BY PUMP CONTROL CIRCULATING STAND-BY PUMP CONTROL BEARING SEGMENT #3 H, P2 L, P2 H, P2 HH, P2 OIL TANK BEARING SEGMENT #3 & #4 LUBE PUMP (STAND BY) L, P2 H, P2 BEARING SEGMENT #3 & #4 LUBE PUMP BEARING SEGMENT #1 P2 FAN #2 LEFT WATER LEAK SENSOR LEFT COOLING WATER L, P2 H, P2 BEARING SEGMENT #1 STATOR WINDING A-F P2 ACCUMULATOR PUMP CONTROL L, P2 H, P2 L, P2 H, P2 BEARING SEGMENT #4 BEARING SEGMENT #2 COOLING AIR DISCHARGE A-B L, P2 L, P2 LL, P2 ACCUMULATOR #1 P2 L, P2 H, P2 THRUST BEARING SEGMENT #3 OVERPRESSURE FAN RIGHT BEARING SEGMENT #4 ACCUMULATOR PUMP (STAND-BY) ACCUMULATOR PUMP (STAND-BY) ACCUMULATOR PUMP BEARING SEGMENT #2 LEAK CONTROL COOLING WATER IN L, P2 H, P2 L, P2 H, P2 BEARING SEGMENT #1 & #2 LUBE PUMP MILL NO.3 FIXED BEARING H, P2 BEARING SEGMENT #4 HH, P1 P2 BEARING SEGMENT #3 L, P2 LL, P2 L, P2 H, P2 H, P2 C2-3320-HX-770/771/772 C2-3320-HX-770/771/772 C2-3320-HX-770/771/772 C2-3320-ML-301 V AG KM LT ISSUED FOR CLIENT REVIEW 23-Dec-11 B RP ISSUED FOR COMBINED REVIEW 19-Jul-11 A 12/23/2011 K. MUNDY A. GUNSON W. BIE L. TAMELIN 12/23/2011 10:24:48 AM WBS: 3320 B PIPING AND INSTRUMENTATION DIAGRAM BALL MILL CIRCUITS 3300-25J-034 BALL MILL NO. 3 ANCILLARIES 3320-WF-1372-C1A-2"-N V 3320-WF-1364-C1A-2"-N 3320-WF-1370-C1A-4"-N V 3320-WF-1365-C1A-4"-N 3320-WF-1366-C1A-4"-N 3320-WF-1371-C1A-4"-N 3320-WF-1367-C1A-2"-N V V 3320-WF-1373-C1A-2"-N 3320-WF-1369-C1A-2"-N 3320-WF-1368-C1A-2"-N D 4 F B A 3 2 1 5 6 8 E 7 C REV. APPROVED CHK. DES. REV. DATE REVISION DESCRIPTION CLIENT LEAD ENGINEER SCALE DRAWING NUMBER CHECK DESIGN CHECK DRAWING DESIGNED BY DRAWN BY APPROVAL DATE APPROVAL DATE APPROVED CHK. DES. REV. DATE REVISION DESCRIPTION REFERENCE DRAWING No. 1:100 0 1:200 5m 10m 0 5m 10m 15m 20m 1:500 10m 0 20m 30m 40m 50m 1:1000 0 100m 50m 1:20 0 0.5m 1m 1.5m 2m 0 1:25 0.5m 1m 1.5m 1:33 1/3 2.5m 2m 0 1m 2m 3m 0 1:50 1m 2m 3m 4m 5m CAD FILE NAME: P:0CAD000SPEM** MODEL UPDATED: DWG. FILE UPDATED: MANUAL CHANGES MADE: YES NO YES NO YES NO PROJECT MANAGER ENGINEERING MANAGER AREA PROJECTENGINEER REFERENCE DRAWINGS SAFETY SHARE: APPROVAL DATE CONTRACT NO. SAFETY SHARE : BA6CVA1.IGR NOTICE: THIS DRAWING HAS NOT BEEN PUBLISHED AND IS THE SOLE PROPERTY OF FLUOR AND IS LENT TO THE BORROWER FOR THEIR CONFIDENTIAL USE ONLY, AND IN CONSIDERATION OF THE LOAN OF THIS DRAWING, THE BORROWER PROMISES AND AGREES TO RETURN IT UPON REQUEST AND AGREES THAT IT WILL NOT BE REPRODUCED, COPIED LENT OR OTHERWISE DISPOSED OF DIRECTLY OR INDIRECTLY, NOR USED FOR ANY OTHER PURPOSE OTHER THAN WHICH IT IS FURNISHED. NONE Apr 2011 240K-C2-
  • 119.
    P.O NO.: VENDOR DWGNO.: VENDOR: P.O NO.: VENDOR DWG NO.: VENDOR: 3330 03512 DIT 3330 03502 DX 3330 03501 AIT 3330 03532 FAH 3330 03532 XL 3330 03512 DX 3330 03501 AE 3330 03511 AE PH 3330 03502 DIT 3330 03502 DIC 3330 03512 DIC 3330 03511 AIC 3330 03502 DE 3330 03512 DE 3330 03532 FSH 3330 03511 AIT 3330 03501 AIC 2-3320-LA-330 LIME CONTROL VALVE, 3320-AV-03301 1502 3300-25J-033 SAFETY SCREEN DUMP PRIMARY CYCLONE U/F LAUNDER, C2-3320-LA-430 1512 3300-25J-037 CYCLONE O/F SAMPLE ROUGHER CELL NO.1 ROW NO.4, C2-3410-CF-401 1105 3400-25J-006 2-3320-LA-430 LIME CONTROL VALVE, 3320-AV-03701 1515 3300-25J-037 SAFETY SCREEN DUMP PRIMARY CYCLONE U/F LAUNDER, C2-3330-LA-330 1493 3300-25J-033 PRIMARY CYCLONE O/F ROUGHER CELL NO.1 ROW NO.3, C2-3410-CF-301 1103 3400-25J-006 CYCLONE O/F SAMPLE ROUGHER CELL NO.1 ROW NO.3, C2-3410-CF-301 1104 3400-25J-006 PRIMARY CYCLONE O/F PRIMARY CYCLONE O/F LAUNDER, C2-3320-LA-407 1525 3300-25J-037 FLOW CONTROL, 3320-FIC-03702 1520 3300-25J-037 PRIMARY CYCLONE O/F ROUGHER CELL NO.1 ROW NO.4, C2-3410-CF-401 1106 3400-25J-006 PRIMARY CYCLONE O/F PRIMARY CYCLONE O/F LAUNDER, C2-3320-LA-307 1498 3300-25J-033 FRESH WATER 3260 3300-25J-036 DOMESTIC WATER 2152 5400-25J-022 FLOW CONTROL, 3320-FIC-03320 1503 3300-25J-033 FRESH WATER 2153 3300-25J-032 VENDOR DWG 3300-25J- VENDOR DWG 3300-25J- SHIFT SAMPLE PH 3% SLOPE SHIFT SAMPLE 3% SLOPE C2-3330-AZ-302 C2-3330-AZ-301 3330-WF-1173-C1A-1-1/2"-N C2-3330-ES-502 AG KM LT ISSUED FOR CLIENT REVIEW 23-Dec-11 B RP ISSUED FOR COMBINED REVIEW 29-Jun-11 A 12/23/2011 K. MUNDY A. GUNSON W. BIE L. TAMELIN 12/22/2011 4:07:53 PM WBS: 3330 B PIPING AND INSTRUMENTATION DIAGRAM BALL MILL CLASSIFICATION 3300-25J-035 MILLS NO. 3 & 4 SAMPLING C2-3330-SA-401 C2-3330-SC-405 C2-3330-SA-301 1-1/2"x1/2" C2-3330-ST-703 C2-3330-SC-305 V C2-3330-ST-704 3330 03532 XA + V V V 3330-SL-1084-R1B-48"-N 1-1/2"x1/2" ES SIZE: C2-3330-SA-401 BALL MILL NO.4 CYCLONE O/F SAMPLER AI SIZE: C2-3330-ST-704 BALL MILL NO.4 O/F SAMPLER DISCH. CHUTE SIZE: C2-3330-SA-301 BALL MILL NO.3 CYCLONE O/F SAMPLER 3330-SL-1051-R1A-4"-N 3330-SL-1055-R1B-48"-N SIZE: C2-3330-AZ-302 GRINDING LINES NO.3 & NO.4 O/F INSTREAM ANALYZER SIZE: C2-3330-AZ-301 GRINDING LINES NO.3 & NO.4 O/F PARTICLE SIZE ANALYZER 3330-SL-1052-R1A-4"-N 3330-SL-1053-C1B-4"-N SIZE: C2-3330-ST-703 BALL MILL NO.3 O/F SAMPLER DISCH. CHUTE SIZE: C2-3330-SC-405 FLOTATION SAFETY SCREEN NO.4 3330-SL-1049-R1A-4"-N AI 3330-SL-1054-C1B-4"-N SIZE: C2-3330-ES-502 CYCLONE AREA SAFETY EYE WASH NO.2 ES 3330-WF-1374-C1A-1-1/2"-N SIZE: C2-3330-SC-305 FLOTATION SAFETY SCREEN NO.3 ES 3330-SL-1050-R1A-4"-N D 4 F B A 3 2 1 5 6 8 E 7 C REV. APPROVED CHK. DES. REV. DATE REVISION DESCRIPTION CLIENT LEAD ENGINEER SCALE DRAWING NUMBER CHECK DESIGN CHECK DRAWING DESIGNED BY DRAWN BY APPROVAL DATE APPROVAL DATE APPROVED CHK. DES. REV. DATE REVISION DESCRIPTION REFERENCE DRAWING No. 1:100 0 1:200 5m 10m 0 5m 10m 15m 20m 1:500 10m 0 20m 30m 40m 50m 1:1000 0 100m 50m 1:20 0 0.5m 1m 1.5m 2m 0 1:25 0.5m 1m 1.5m 1:33 1/3 2.5m 2m 0 1m 2m 3m 0 1:50 1m 2m 3m 4m 5m CAD FILE NAME: P:0CAD000SPEM** MODEL UPDATED: DWG. FILE UPDATED: MANUAL CHANGES MADE: YES NO YES NO YES NO PROJECT MANAGER ENGINEERING MANAGER AREA PROJECTENGINEER REFERENCE DRAWINGS SAFETY SHARE: APPROVAL DATE CONTRACT NO. SAFETY SHARE : BA6CVA1.IGR NOTICE: THIS DRAWING HAS NOT BEEN PUBLISHED AND IS THE SOLE PROPERTY OF FLUOR AND IS LENT TO THE BORROWER FOR THEIR CONFIDENTIAL USE ONLY, AND IN CONSIDERATION OF THE LOAN OF THIS DRAWING, THE BORROWER PROMISES AND AGREES TO RETURN IT UPON REQUEST AND AGREES THAT IT WILL NOT BE REPRODUCED, COPIED LENT OR OTHERWISE DISPOSED OF DIRECTLY OR INDIRECTLY, NOR USED FOR ANY OTHER PURPOSE OTHER THAN WHICH IT IS FURNISHED. NONE Apr 2011 240K-C2- ES 3330 33502 XV + FI 3330 33502 XA MISMATCH V M 3330 33502 HS 3330 33502 ZS ES V3 3330 33501 XV + FI 3330 33501 XA MISMATCH V M 3330 33501 HS 3330 33501 ZS ES V3 3320-SL-1047-R1B-48"-N 3330-SL-1057-R1A-40"-N 3330-WF-1114-C1A-4"-N 3320-SL-33501-R1A-40"-N 3320-SL-1064-R1B-48"-N 3330-WF-1027-G1A-1-1/2"-N
  • 120.
    T3 3310 03605 ZS 3310 03604 ZS 3310 03604 XA 3310 03605 XA 3310 03603 PIT 3310 AP 3310 03602 LT 3310 03603 FIT 3310 03681 H TI 3310 03601 FI 3310 03606 PI 3310 03601 DIT 3310 03681 XA 3310 03602 LE 3310 03601 DE 3310 03603 FI L, P2 LL,P1 3310 03601 DX 3310 03681 H TE 3310 03608 XA 3310 AP M 3310 03601 DI 3310 03607 PI 3310 03603 PI L, P1 3310 03608 ZS 3310 03601 WI M 3310 03601 FIT 3310 03602 LIC 3310 03601 WY M 3310 03681 G TE 3310 03681 II 3310 03681 HS J/SP 3310 03602 LI 3310 03608 B HS OP/CL L/R 3310 03681 G TI BRG FRONT H, P2 HH,P1 GLAND SEAL WATER 2947 3900-25J-023 FRESH WATER 3267 3300-25J-042 PROCESS WATER 1658 3900-25J-014 BALL MILL SCREEN U/S BALL MILL FEED SCREEN, C2-3310-SC-410 1652 3300-25J-012 BALL MILL SCREEN U/S BALL MILL FEED SCREEN, C2-3310-SC-402 1653 3300-25J-012 PRIMARY CYCLONE FEED PRIMARY CYCLONE, C2-3330-CS-401 1662 3300-25J-037 BALL MILL NO.1 DISCHARGE BALL MILL NO.1 DISCHARGE LAUNDER, C2-3320-LA-401 1650 3300-25J-037 FRESH WATER 3260 3300-25J-035 PROCESS WATER 1657 3900-25J-014 OP/CL MISMATCH MISMATCH NOTE 3 NOTES: 1. DRAIN SEQUENCE WILL OPEN THE DRAIN VALVE AFTER A SET PERIOD OF INACTIVITY. 2. WILL OPERATE IN ACCORDANCE WITH THE DRAIN PROCEDURE AS DESCRIBED IN THE CONTROL PHILOSOPHY. 3. DIRECT DRAIN LINES TOWARDS AREA SPILLAGE PUMP. 4. IN ADDITION TO THE STANDARD MAINTENANCE DATA, THIS WILL ALSO CAPTURE THE PUMP LIFE VS THE MASS FLOW TROUGH THE PUMP. 5. DELETED 6. CYCLONE FEED PUMP FLOW SWITCHES, PRESSURE SWITCHES AND ISOLATION VALVES TO BE LOCATED ON THE OPERATING LEVEL. 7. SPACE PROVIDED FOR MANUAL SAMPLING. FAULT NOTE 2 AFD MISMATCH MIN NOTE 7 NOTE 2 MIN OP/CL NOTE 3 BRG REAR H, P2 HH,P1 (LAUNDER) MASS FLOW H, P2 L, P2 OP/CL MIN FI 3310 03608 XV + 1-1/2" AG KM LT ISSUED FOR CLIENT REVIEW 23-Dec-11 B RP ISSUED FOR COMBINED REVIEW 29-Jun-11 A 12/23/2011 K. MUNDY A. GUNSON W. BIE L. TAMELIN 12/23/2011 10:26:57 AM WBS: 3310 B PIPING AND INSTRUMENTATION DIAGRAM BALL MILL FEED 3300-25J-036 PRIMARY CYCLONE FEED SUMP NO. 4 C2-3310-PP-401 1-1/2" 3310 03605 XV + 3310 03604 XV + 3"x2" 54"x36" TO FLOOR 2"x1-1/4" TO FLOOR 3310 03601 FE + 36" 3"x2" 3310 03603 FE + C2-3310-BX-401 FI 3310-WR-1129-C1A-8"-N 3310-SL-1059-R1B-54"-N ES 3310-WR-1083-C1A-8"-N ES 3310-WG-1023-C1A-2"-N 3310-WF-1375-C1A-1-1/2"-N ES ES 3310-WR-1489-C1A-8"-N 3310-SL-1062-R1B-48"-N SIZE: MATERIAL: MOTOR: C2-3310-PP-401 PRIMARY CYCLONE FEED PUMP NO.4 (AFD) SIZE: MATERIAL: CAPACITY:290.0 m^3 TRIM:3310-SL-1060-C1B C2-3310-BX-401 BALL MILL CYCLONE FEED SUMP 3310-WF-1111-C1A-1"-N 3310-WF-1487-C1A-8"-N 3310-WF-1114-C1A-4"-N D 4 F B A 3 2 1 5 6 8 E 7 C REV. APPROVED CHK. DES. REV. DATE REVISION DESCRIPTION CLIENT LEAD ENGINEER SCALE DRAWING NUMBER CHECK DESIGN CHECK DRAWING DESIGNED BY DRAWN BY APPROVAL DATE APPROVAL DATE APPROVED CHK. DES. REV. DATE REVISION DESCRIPTION REFERENCE DRAWING No. 1:100 0 1:200 5m 10m 0 5m 10m 15m 20m 1:500 10m 0 20m 30m 40m 50m 1:1000 0 100m 50m 1:20 0 0.5m 1m 1.5m 2m 0 1:25 0.5m 1m 1.5m 1:33 1/3 2.5m 2m 0 1m 2m 3m 0 1:50 1m 2m 3m 4m 5m CAD FILE NAME: P:0CAD000SPEM** MODEL UPDATED: DWG. FILE UPDATED: MANUAL CHANGES MADE: YES NO YES NO YES NO PROJECT MANAGER ENGINEERING MANAGER AREA PROJECTENGINEER REFERENCE DRAWINGS SAFETY SHARE: APPROVAL DATE CONTRACT NO. SAFETY SHARE : BA6CVA1.IGR NOTICE: THIS DRAWING HAS NOT BEEN PUBLISHED AND IS THE SOLE PROPERTY OF FLUOR AND IS LENT TO THE BORROWER FOR THEIR CONFIDENTIAL USE ONLY, AND IN CONSIDERATION OF THE LOAN OF THIS DRAWING, THE BORROWER PROMISES AND AGREES TO RETURN IT UPON REQUEST AND AGREES THAT IT WILL NOT BE REPRODUCED, COPIED LENT OR OTHERWISE DISPOSED OF DIRECTLY OR INDIRECTLY, NOR USED FOR ANY OTHER PURPOSE OTHER THAN WHICH IT IS FURNISHED. NONE Apr 2011 240K-C2- V V FI CRUSH. PLANT EFFLUENT BALL MILL CYCLONE FEED SUMP NO.1, C2-3310-BX-101 3523 3300-25J-022 CRUSH. PLANT EFFLUENT BALL MILL CYCLONE FEED SUMP NO.2, C2-3310-BX-201 3524 3300-25J-026 CRUSH. PLANT EFFLUENT BALL MILL CYCLONE FEED SUMP NO.3, C2-3310-BX-301 3525 3300-25J-032 CRUSH. PLANT EFFLUENT BALL MILL CYCLONE FEED SUMP NO.5, C2-3310-BX-501 3526 3300-25J-042 CRUSH. PLANT EFFLUENT BALL MILL CYCLONE FEED SUMP NO.6, C2-3310-BX-601 3527 3300-25J-046 C2-3240-PP-023/024 3310 03609 XA 3310 03609 XV + OP/CL MISMATCH V1 FI 3310 03609 ZS 3310-SL-1805-C1B-4"-N 3310 03611 XA 3310 03611 XV + OP/CL MISMATCH V1 FI 3310 03611 ZS 3310 03612 XA 3310 03612 XV + OP/CL MISMATCH V1 FI 3310 03612 ZS 3310 03613 XA 3310 03613 XV + OP/CL MISMATCH V1 FI 3310 03613 ZS 3310 03614 XA 3310 03614 XV + OP/CL MISMATCH V1 FI 3310 03614 ZS 3310 03610 XA 3310 03610 XV + OP/CL MISMATCH V1 FI 3310 03610 ZS ES 3310-SL-1005-C1B-10"-N 3310-SL-1802-C1B-4"-N 3310-SL-1803-C1B-4"-N 3310-SL-1804-C1B-4"-N 3310-SL-1806-C1B-4"-N 3310-SL-1807-C1B-4"-N C.O. SCREEN AREA SUMP COARSE SCREENING EFFLUENT PUMPS, 3250 3200-25J-019 CONTENTS C2-3300-HX-770/771/772 FRESH WATER GRINDING AREA HEAT EXCHANGERS, 3712 3300-25J-054
  • 121.
    D 4 F B A 3 2 1 5 68 E 7 C REV. APPROVED CHK. DES. REV. DATE REVISION DESCRIPTION CLIENT LEAD ENGINEER SCALE DRAWING NUMBER CHECK DESIGN CHECK DRAWING DESIGNED BY DRAWN BY APPROVAL DATE APPROVAL DATE APPROVED CHK. DES. REV. DATE REVISION DESCRIPTION REFERENCE DRAWING No. 1:100 0 1:200 5m 10m 0 5m 10m 15m 20m 1:500 10m 0 20m 30m 40m 50m 1:1000 0 100m 50m 1:20 0 0.5m 1m 1.5m 2m 0 1:25 0.5m 1m 1.5m 1:33 1/3 2.5m 2m 0 1m 2m 3m 0 1:50 1m 2m 3m 4m 5m CAD FILE NAME: P:0CAD000SPEM** MODEL UPDATED: DWG. FILE UPDATED: MANUAL CHANGES MADE: YES NO YES NO YES NO PROJECT MANAGER ENGINEERING MANAGER AREA PROJECTENGINEER REFERENCE DRAWINGS SAFETY SHARE: APPROVAL DATE CONTRACT NO. SAFETY SHARE : BA6CVA1.IGR NOTICE: THIS DRAWING HAS NOT BEEN PUBLISHED AND IS THE SOLE PROPERTY OF FLUOR AND IS LENT TO THE BORROWER FOR THEIR CONFIDENTIAL USE ONLY, AND IN CONSIDERATION OF THE LOAN OF THIS DRAWING, THE BORROWER PROMISES AND AGREES TO RETURN IT UPON REQUEST AND AGREES THAT IT WILL NOT BE REPRODUCED, COPIED LENT OR OTHERWISE DISPOSED OF DIRECTLY OR INDIRECTLY, NOR USED FOR ANY OTHER PURPOSE OTHER THAN WHICH IT IS FURNISHED. NONE Apr 2011 240K-C2- 3320 03702 FV + 3320 03705 PIC VENDOR DWG NO 3300-25J-337 NOTE 2 10" H, P2 L, P2 3320 03703 FIT C2-3330-ST-430 16"x10" C2-3320-SC-407 EMERGENCY BALLS FROM BALL BUCKET M 3320 03702 FE + 3320 33701 XV + 3320 03711 XA + NOTE 2 M C2-3330-CS-401 3320 03704 FV + 16"x14" 3320 03703 FIC 3320 03702 FIT C2-3320-ST-490 16"x10" 3320 03703 FV + 3320 03781 XA NOTES: 1. MILL CAPACITY IS BASED ON NEW FEED. 2. SPACE PROVIDED FOR MANUAL SAMPLING 3. HORN FOR START UP. 3320 03701 AV + NOTE 1 3320 03781 HS FAULT 6" C2-3320-LA-401 C2-3330-LA-430 C2-3320-ML-401 3320 03702 FIC 3320 03704 FIT LAUNDER 3320 03703 FE + 3320 03781 II 3320 03704 FIC TOTE BIN 16"x14" 3320 03704 FE + M 1-1/2"x1/2" SIZE: C2-3320-SC-407 BAL MILL NO.4 DISCH. TRAMP GRIZZLY NOTE 2 C2-3330-LA-407 C2-3320-ST-409 14" SAMPLE POINT C2-3330-ST-420 3320 03705 PIT SECONDARY COLLECTOR INJECTOR, C2-3910-ZM-619 1507 3900-25J-002 PRIMARY COLLECTOR INJECTOR, C2-3910-ZM-593 1508 3900-25J-001 MO COLLECTOR INJECTOR, C2-3910-ZM-585 1509 3900-25J-003 MILK OF LIME LIME DISTRIBUTOR PUMPS, C2-3920-PP-093/094 1510 3900-25J-012 TEST REAGENT INJECTOR, C2-3910-ZM-696 1511 3900-25J-004 SAMPLER SAFETY SCREEN FLOTATION SAFETY SCREEN, C2-3330-SC-405 1512 3300-25J-035 GRINDING BALLS BALL MILL TRANSFER CONVEYOR, C2-3320-CV-034 1513 3300-25J-053 PRIMARY CYCLONE FEED PRIMARY CYCLONE FEED PUMP C2-3310-PP-401 1514 3300-25J-036 IN-LINE ANALYZER PH-CONTROL, 1515 3300-25J-035 DENSITY CONTROL, 3330-DIC-03512 1520 3300-25J-035 FROTHER GLYCOL INJECTOR, C2-3910-ZM-674 1521 3900-25J-005 PROCESS WATER 1522 3900-25J-014 PROCESS WATER 1523 3900-25J-014 PROCESS WATER 1524 3900-25J-014 PRIMARY CYCLONE O/F BALL MILL NO.4 CYCLONE O/F SAMPLER, C2-3330-SA-401 1525 3300-25J-035 T4 3320-WR-1131-C1A-16"-N SIZE:16 x 840 mm C2-3330-CS-401 PRIMARY CYCLONE CLUSTER 3320-WR-1490-C1A-2"-N 3320-RF-1015-C1D-1"-N 3320-RC-1098-C1D-1"-N SIZE: C2-3320-ST-490 BALL MILL NO. 4 TRAMP CHUTE SIZE: C2-3330-LA-407 PRIMARY CYCLONE O/F LAUNDER 3320-WR-1131-C1A-16"-N 3320-WR-1127-C1A-16"-N 3330-SL-1063-R1A-6"-N 3320-WR-1130-C1A-16"-N 3330-SL-1064-R1B-16"-N 3320-RL-1025-C1B-2"-N 3320-RL-1011-C1B-2"-N SIZE: C2-3330-ST-420 BALL MILL NO. 4 FEED CHUTE SIZE: C2-3330-ST-430 CYCLONE U/F LAUNDER DISCHARGE BOX 3330-SL-1065-R1B-48"-N SIZE: C2-3320-ST-409 BALL MILL NO.4 HOOD & CHUTE 3320-RC-1135-C1D-1"-N SIZE: C2-3330-LA-430 CYCLONE U/F LAUNDER 3310-SL-1062-R1A-48"-N SIZE: C2-3320-LA-401 BALL MILL NO. 4 DISCH. LAUNDER 3320-WR-1491-C1A-1-1/2"-N 3320-RC-1017-C1D-1"-N 3320-RC-1052-C1D-1"-N AG KM LT ISSUED FOR CLIENT REVIEW 23-Dec-11 B RP ISSUED FOR COMBINED REVIEW 29-Jun-11 A 12/23/2011 K. MUNDY A. GUNSON W. BIE L. TAMELIN 12/22/2011 4:13:20 PM WBS: 3320 B PIPING AND INSTRUMENTATION DIAGRAM BALL MILL CIRCUITS 3300-25J-037 BALL MILL NO. 4 RSP 3320 03701 ZS OP/CL NOTE 3 SIZE: 8.2 m D x 14.6 m EGL MOTOR: 22000.00 kW C2-3320-ML-401 BALL MILL NO. 4 C2-3320-ZM-035 SIZE: C2-3320-ZM-035 BOLT REMOVAL TOOL NO.1 3320 33701 XA MISMATCH A-R 3320 33701 ZS OP/CL A-R A-R (QTY 16) BALL MILL DISCHARGE PRIMARY CYCLONE FEED SUMP, C2-3310-BX-401 1650 3300-25J-036 ES FC ES FC ES FC V V FI FC 3330-AIC-03511 3330-SL-1056-R1A-40"-N 3320 33702 PI V FRESH WATER 3320-LV-02307 4126 3300-25J-023 3320-WF- -C1A-10"-N M 3320-FQI-02306 4208 3300-25J-023 3320 03706 FIT 3320 03706 FE +
  • 122.
    D 4 F B A 3 2 1 5 68 E 7 C REV. APPROVED CHK. DES. REV. DATE REVISION DESCRIPTION CLIENT LEAD ENGINEER SCALE DRAWING NUMBER CHECK DESIGN CHECK DRAWING DESIGNED BY DRAWN BY APPROVAL DATE APPROVAL DATE APPROVED CHK. DES. REV. DATE REVISION DESCRIPTION REFERENCE DRAWING No. 1:100 0 1:200 5m 10m 0 5m 10m 15m 20m 1:500 10m 0 20m 30m 40m 50m 1:1000 0 100m 50m 1:20 0 0.5m 1m 1.5m 2m 0 1:25 0.5m 1m 1.5m 1:33 1/3 2.5m 2m 0 1m 2m 3m 0 1:50 1m 2m 3m 4m 5m CAD FILE NAME: P:0CAD000SPEM** MODEL UPDATED: DWG. FILE UPDATED: MANUAL CHANGES MADE: YES NO YES NO YES NO PROJECT MANAGER ENGINEERING MANAGER AREA PROJECTENGINEER REFERENCE DRAWINGS SAFETY SHARE: APPROVAL DATE CONTRACT NO. SAFETY SHARE : BA6CVA1.IGR NOTICE: THIS DRAWING HAS NOT BEEN PUBLISHED AND IS THE SOLE PROPERTY OF FLUOR AND IS LENT TO THE BORROWER FOR THEIR CONFIDENTIAL USE ONLY, AND IN CONSIDERATION OF THE LOAN OF THIS DRAWING, THE BORROWER PROMISES AND AGREES TO RETURN IT UPON REQUEST AND AGREES THAT IT WILL NOT BE REPRODUCED, COPIED LENT OR OTHERWISE DISPOSED OF DIRECTLY OR INDIRECTLY, NOR USED FOR ANY OTHER PURPOSE OTHER THAN WHICH IT IS FURNISHED. NONE Apr 2011 240K-C2- AG KM LT ISSUED FOR CLIENT REVIEW 23-Dec-11 B RP ISSUED FOR COMBINED REVIEW 19-Jul-11 A 12/23/2011 K. MUNDY A. GUNSON W. BIE L. TAMELIN 12/23/2011 10:28:47 AM WBS: 3320 B PIPING AND INSTRUMENTATION DIAGRAM BALL MILL CIRCUITS 3300-25J-041 BALL MILL NO. 4 ANCILLARIES 3320 34812 TI 3320 34516 PAL BEARING SEGMENT #4 3320 34802 TI H, P2 BEARING SEGMENT #3 THRUST BEARING LUBE PUMP (STAND-BY) 3320 34821 PI 3320 34515 PI L, P2 H, P2 THRUST BEARING LUBE PUMP 3320 34831 PI 3320 34507 FAL BEARING SEGMENT #1 CIRCULATING PUMP (STAND-BY) 3320 34603 XA 3320 36523 LA L, P2 H, P2 CIRCULATING PUMP 3320 34811 PI LOW PRESSURE STAND-BY PUMP CONTROL BEARING SEGMENT #2 ACCUMULATOR PUMP (STAND-BY) 3320 34801 PI 3320 36508 PAL L, P2 H, P2 ACCUMULATOR PUMP P.O NO.: VENDOR DWG NO.: VENDOR: 3320 04102 TE H, P2 CIRCULATING PUMP BEARING SEGMENT #3 & #4 LUBE PUMP (STAND BY) 3320 04102 TI 3320 36522 PDI BEARING SEGMENT #3 & #4 STAND-BY PUMP CONTROL BEARING SEGMENT #3 & #4 LUBE PUMP 3320 04101 TI 3320 36518 PAL ACCUMULATOR #2 BEARING SEGMENT #1 & #2 LUBE PUMP (STAND BY) 3320 03101 TE 3320 36521 FAL ACCUMULATOR #1 BEARING SEGMENT #1 & #2 LUBE PUMP 3320 04104 TE 3320 36519 PAL P2 CIRCULATING PUMP (STAND-BY) 3320 04104 TI 3320 36523 TI P2 CIRCULATING PUMP 3320 04105 FAL ACCUMULATOR #2 P2 ACCUMULATOR PUMP (STAND-BY) 3320 04105 FISL ACCUMULATOR PUMP CONTROL ACCUMULATOR PUMP CONTROL BEARING SEGMENT #3 & #4 LUBE PUMP (STAND BY) 3320 04103 TI 3320 36509 PAL BEARING SEGMENT #1 & #2 STAND-BY PUMP CONTROL BEARING SEGMENT #3 & #4 LUBE PUMP 3320 04103 TE 3320 36516 PAL OIL TANK BEARING SEGMENT #1 & #2 LUBE PUMP (STAND BY) LUBE TANK OIL 3320 36517 PI P2 BEARING SEGMENT #1 & #2 LUBE PUMP AIR GAP SENSORS A-H, J 3320 36507 PI LUBE OIL FILTER CYCLOCONVERTER COOLING WATER PUMP (STAND BY) H, P2 3320 36520 PI HH, P2 CYCLOCONVERTER COOLING WATER PUMP H, P2 P2 P2 FAN #2 RIGHT 3320 36506 PAL OIL TANK FAN #2 LEFT ACCUMULATOR PUMP H, P2 CIRCULATING STAND-BY PUMP CONTROL FAN #1 RIGHT CIRCULATING STAND-BY PUMP CONTROL CIRCULATING OIL FAN #1 LEFT COMMON ALARM 3320 34506 PDI LOW PRESSURE OIL OVERPRESSURE FAN RIGHT P2 LUBE OIL FILTER OVERPRESSURE FAN LEFT LUBE TANK OIL P2 MILL NO. 4 CYCLOCONVERTER CONTROL 3320 34520 XA COMMON ALARM LEAK CONTROL H, P2 P2 MILL NO.4 MOTOR CONTROL 3320 36525 XA P2 P2 MILL NO. 4 FLOATING BEARING 3320 34510 PAL P2 MILL NO.4 FIXED BEARING 3320 34509 TI H, P2 MILL NO.4 FLOATING BEARING LUBE UNIT CIRCULATING OIL L, P2 MILL NO.4 FIXED BEARING LUBE UNIT 3320 34508 LALL P2 BEARING SEGMENT #1 3320 34505 PAL P2 BEARING SEGMENT #2 P2 CIRCULATING PUMP BEARING SEGMENT #3 3320 36415 LAH L, P2 H, P2 BEARING SEGMENT #1 3320-WF-1384-C1A-2"-N A, B L, P2 H, P2 LL, P2 BEARING SEGMENT #2 3320-WF-1381-C1A-2"-N 3320 36414 MI BEARING SEGMENT #1 & #2 STAND-BY PUMP CONTROL BEARING SEGMENT #3 3320-WF-1383-C1A-4"-N 3320 36604 TI MILL BRAKE CONTROLS THRUST BEARING SEGMENT #1 3320-WF-1382-C1A-4"-N 3320 36603 FI P2 THRUST BEARING SEGMENT #2 3320 36602 LAH CIRCULATING WATER THRUST BEARING SEGMENT #3 3320 36734 TI COOLING WATER PUMPS BEARING SEGMENT #4 3320 36724 TI EXPANSION TANK BEARING SEGMENT #4 3320 36714 TI ACCUMULATOR #1 THRUST BEARING SEGMENT #4 3320 36704 TI BEARING SEGMENT #3 & #4 STAND-BY PUMP CONTROL L, P2 H, P2 3320 36733 TI 3320 34611 XA L, P2 H, P2 3320 36723 TI 3320 34601 XA L, P2 H, P2 3320 36713 TI 3320 34501 XA L, P2 H, P2 3320 36703 TI 3320 34511 XA L, P2 H, P2 3320 36610 TI 3320 34502 XA L, P2 H, P2 3320 36609 TI 3320 34512 XA L, P2 H, P2 COMMON ALARM 3320 36608 CI 3320 34503 XA L, P2 H, P2 3320 36410 XA 3320 36607 PI 3320 34513 XA L, P2 H, P2 3320 36606 LI 3320 34514 XA H, P2 3320 36605 TI 3320 34504 XA H, P2 3320 36732 PI 3320 36515 XA H, P2 3320 36722 PI 3320 36505 XA H, P2 3320 36712 PI 3320 36514 XA WATER LEAK SENSOR LEFT 3320 36702 PI 3320 36503 XA COOLING AIR DISCHARGE A-B BEARING SEGMENT #1 3320 36512 XA COOLING AIR INTAKE A-B 3320 36701 SI 3320 36502 XA SEALING SYSTEM WEAR A-B BEARING SEGMENT #2 3320 36504 XA STATOR WINDING A-F 3320 36711 SI 3320 36513 XA COOLING WATER IN BEARING SEGMENT #4 3320 36511 XA COOLING WATER 3320 36731 SI 3320 36501 XA H, P2 HH, P2 COMMON ALARM BEARING SEGMENT #3 3320 36611 XA L, P2 LL, P2 3320 36610 XA 3320 36721 SI 3320 36601 XA WATER LEAK SENSOR RIGHT 3320 34614 LALL 3320 36413 XA COOLANT FROM HEAT EXCHANGER 3320 34615 TA 3320 36412 XA COOLANT TO HEAT EXCHANGER V 3320 34614 LAL 3320 36411 XA H, P2 HH, P2 V 3320 34616 PDAH 3320 36403 XA L, P2 V 3320 34617 ZL 3320 36402 XA L, P2 LL, P2 V 3320 34607 ZL 3320 36401 XA COOLING WATER OUT V 3320 34606 PDAH 3320 36404 TI H, P2 HH, P2 3320 34605 TA P.O NO.: VENDOR DWG NO.: VENDOR: 3320 36405 TI H, P2 HH, P2 3320 34604 LALL 3320 36406 TI BEARING SEGMENT #4 P.O NO.: VENDOR DWG NO.: VENDOR: 3320 34604 LAL P2 BEARING SEGMENT #3 3320 34832 TI 3320 36407 LAH BEARING SEGMENT #4 P.O NO.: VENDOR DWG NO.: VENDOR: 3320 34822 TI 3320 36408 XA BEARING SEGMENT #3 3320-WF-1385-C1A-2"-N 3320 34833 SI 3320 36409 ZA BEARING SEGMENT #2 3320-WF-1378-C1A-4"-N P.O NO.: VENDOR DWG NO.: VENDOR: 3320 34823 SI 3320 34519 PAL BEARING SEGMENT #1 3320-WF-1377-C1A-4"-N 3320 34813 SI L,P2 LL, P2 BEARING SEGMENT #1 3320-WF-1376-C1A-2"-N COMMON ALARM COMMON ALARM P.O NO.: VENDOR DWG NO.: VENDOR: 3320 34803 SI 3320 34518 PAL BEARING SEGMENT #2 3320-WF-1380-C1A-2"-N 3320 34810 XA 3320 36710 XA H, P2 HH, P2 3320 34517 PAL L, P2 H, P2 3320-WF-1379-C1A-2"-N P.O NO.: VENDOR DWG NO.: VENDOR: L, P2 H, P2 L, P2 H, P2 L, P2 H, P2 L, P2 H, P2 HH, P1 C2-3320-ML-401 CLOSED LOOP CWS GRINDING AREA HEAT EXCHANGERS, 3884 3300-25J-057 CLOSED LOOP CWS GRINDING AREA HEAT EXCHANGERS, 3882 3300-25J-057 CLOSED LOOP CWS GRINDING AREA HEAT EXCHANGERS, 3883 3300-25J-057 CLOSED LOOP CWS GRINDING AREA HEAT EXCHANGERS, 3880 3300-25J-057 CLOSED LOOP CWS GRINDING AREA HEAT EXCHANGERS, 3881 3300-25J-057 C2-3320-HX-770/771/772 C2-3320-HX-770/771/772 C2-3320-HX-770/771/772 C2-3320-HX-770/771/772 C2-3320-HX-770/771/772 CLOSED LOOP CWS GRINDING COOLING SYSTEM PUPMS, C2-3320-PP-765/766 3946 3300-25J-056 CLOSED LOOP CWS GRINDING COOLING SYSTEM PUPMS, C2-3320-PP-765/766 3945 3300-25J-056 CLOSED LOOP CWS GRINDING COOLING SYSTEM PUPMS, C2-3320-PP-765/766 3948 3300-25J-056 CLOSED LOOP CWS GRINDING COOLING SYSTEM PUPMS, C2-3320-PP-765/766 3947 3300-25J-056 CLOSED LOOP CWS GRINDING COOLING SYSTEM PUPMS, C2-3320-PP-765/766 3949 3300-25J-056
  • 123.
    T3 3310 04204 ZS 3310 04205 ZS 3310 04205 XA MISMATCH 3310 04204 XA MISMATCH 3310 04201 WI M 3310 04203 FI L, P2 LL, P1 3310 04201 DIT 3310 04281 II J/SP M 3310 04201 DE 3310 04203 PI L,P1 3310 04281 H TI 3310 04203 PIT 3310 04202 LT 3310 AP 3310 04201 FI 3310 04281 G TI BRG FRONT H, P2 HH,P1 3310 04208 XA 3310 04281 G TE 3310 AP 3310 04201 DX 3310 04281 H TE 3310 04281 XA M 3310 04208 B HS OP/CL L/R 3310 04201 DI 3310 04281 HS 3310 04202 LIC 3310 04202 LI 3310 04203 FIT 3310 04206 PI 3310 04207 PI 3310 04208 ZS 3310 04201 WY 3310 04201 FIT 3310 04202 LE GLAND SEAL WATER 2948 3900-25J-023 FRESH WATER 3267 3300-25J-036 BALL MILL SCREEN U/S BALL MILL FEED SCREEN, C2-3310-SC-502 1687 3300-25J-015 FRESH WATER 2163 3300-25J-045 BALL MILL NO.5 DISCHARGE BALL MILL NO.5 DISCHARGE LAUNDER, C2-3320-LA-501 1686 3300-25J-043 PROCESS WATER 1691 3900-25J-014 PROCESS WATER 1685 3900-25J-014 PLANT AIR COMPRESSORS SPENT COOLING WATER 1689 3900-25J-018 PRIMARY CYCLONE FEED PRIMARY CYCLONE, C2-3330-CS-501 1694 3300-25J-043 BALL MILL SCREEN U/S BALL MILL FEED SCREEN, C2-3310-SC-501 1688 3300-25J-015 MIN NOTE 3 MIN NOTES: 1. DRAIN SEQUENCE WILL OPEN THE DRAIN VALVE AFTER A SET PERIOD OF INACTIVITY. 2. WILL OPERATE IN ACCORDANCE WITH THE DRAIN PROCEDURE AS DESCRIBED IN THE CONTROL PHILOSOPHY. 3. DIRECT DRAIN LINES TOWARDS AREA SPILLAGE PUMP. 4. IN ADDITION TO THE STANDARD MAINTENANCE DATA, THIS WILL ALSO CAPTURE THE PUMP LIFE VS THE MASS FLOW TROUGH THE PUMP. 5. DELETED 6. CYCLONE FEED PUMP FLOW SWITCHES, PRESSURE SWITCHES AND ISOLATION VALVES TO BE LOCATED ON THE OPERATING LEVEL. 7. SPACE PROVIDED FOR MANUAL SAMPLING. AFD MASS FLOW NOTE 2 FAULT H, P2 L, P2 OP/CL NOTE 3 MISMATCH (LAUNDER) MIN BRG REAR H, P2 HH,P1 NOTE 7 NOTE 2 OP/CL OP/CL C2-3310-BX-501 TO FLOOR 3310 04201 FE + 1-1/2" 3310 04205 XV + 1-1/2" 3"x2" 3310 04203 FE + FI 3310 04208 XV + 2"x1-1/4" FI 3"x2" 36" AG KM LT ISSUED FOR CLIENT REVIEW 23-Dec-11 B RP ISSUED FOR COMBINED REVIEW 29-Jun-11 A 12/23/2011 K. MUNDY A. GUNSON W. BIE L. TAMELIN 12/23/2011 10:29:44 AM WBS: 3310 B PIPING AND INSTRUMENTATION DIAGRAM BALL MILL FEED 3300-25J-042 PRIMARY CYCLONE FEED SUMP NO. 5 C2-3310-PP-501 TO FLOOR 54"x36" 3310 04204 XV + 3310-WF-1488-C1A-8"-N 3310-WF-1114-C1A-4"-N 3310-WR-1173-C1A-8"-N ES ES SIZE: MATERIAL: CAPACITY:290.0 m^3 TRIM:3310-SL-1066-C1B C2-3310-BX-501 BALL MILL CYCLONE FEED SUMP 3310-SL-1070-R1B-48"-N 3960-WF-1522-C1A-6"-N ES 3310-WG-1024-C1A-2"-N 3310-WF-1386-C1A-1-1/2"-N 3310-WR-1140-C1A-8"-N ES 3310-WR-1492-C1A-8"-N 3310-SL-1069-R1B-54"-N SIZE: MATERIAL: MOTOR: C2-3310-PP-501 PRIMARY CYCLONE FEED PUMP NO.5 (AFD) D 4 F B A 3 2 1 5 6 8 E 7 C REV. APPROVED CHK. DES. REV. DATE REVISION DESCRIPTION CLIENT LEAD ENGINEER SCALE DRAWING NUMBER CHECK DESIGN CHECK DRAWING DESIGNED BY DRAWN BY APPROVAL DATE APPROVAL DATE APPROVED CHK. DES. REV. DATE REVISION DESCRIPTION REFERENCE DRAWING No. 1:100 0 1:200 5m 10m 0 5m 10m 15m 20m 1:500 10m 0 20m 30m 40m 50m 1:1000 0 100m 50m 1:20 0 0.5m 1m 1.5m 2m 0 1:25 0.5m 1m 1.5m 1:33 1/3 2.5m 2m 0 1m 2m 3m 0 1:50 1m 2m 3m 4m 5m CAD FILE NAME: P:0CAD000SPEM** MODEL UPDATED: DWG. FILE UPDATED: MANUAL CHANGES MADE: YES NO YES NO YES NO PROJECT MANAGER ENGINEERING MANAGER AREA PROJECTENGINEER REFERENCE DRAWINGS SAFETY SHARE: APPROVAL DATE CONTRACT NO. SAFETY SHARE : BA6CVA1.IGR NOTICE: THIS DRAWING HAS NOT BEEN PUBLISHED AND IS THE SOLE PROPERTY OF FLUOR AND IS LENT TO THE BORROWER FOR THEIR CONFIDENTIAL USE ONLY, AND IN CONSIDERATION OF THE LOAN OF THIS DRAWING, THE BORROWER PROMISES AND AGREES TO RETURN IT UPON REQUEST AND AGREES THAT IT WILL NOT BE REPRODUCED, COPIED LENT OR OTHERWISE DISPOSED OF DIRECTLY OR INDIRECTLY, NOR USED FOR ANY OTHER PURPOSE OTHER THAN WHICH IT IS FURNISHED. NONE Apr 2011 240K-C2- V V FI C2-3240-PP-023/024 EFFLUENT 3310-SL-1806-C1B-4"-N ES 3310-WF-1110-C1A-1"-N CRUSHING PLANT COARSE SCREENING EFFLUENT PUMPS, 3526 3300-25J-036 3310-WF-1114-C1A-4"-N C2-3300-HX-770/771/772 FRESH WATER GRINDING AREA HEAT EXCHANGERS, 3714 3300-25J-054
  • 124.
    D 4 F B A 3 2 1 5 68 E 7 C REV. APPROVED CHK. DES. REV. DATE REVISION DESCRIPTION CLIENT LEAD ENGINEER SCALE DRAWING NUMBER CHECK DESIGN CHECK DRAWING DESIGNED BY DRAWN BY APPROVAL DATE APPROVAL DATE APPROVED CHK. DES. REV. DATE REVISION DESCRIPTION REFERENCE DRAWING No. 1:100 0 1:200 5m 10m 0 5m 10m 15m 20m 1:500 10m 0 20m 30m 40m 50m 1:1000 0 100m 50m 1:20 0 0.5m 1m 1.5m 2m 0 1:25 0.5m 1m 1.5m 1:33 1/3 2.5m 2m 0 1m 2m 3m 0 1:50 1m 2m 3m 4m 5m CAD FILE NAME: P:0CAD000SPEM** MODEL UPDATED: DWG. FILE UPDATED: MANUAL CHANGES MADE: YES NO YES NO YES NO PROJECT MANAGER ENGINEERING MANAGER AREA PROJECTENGINEER REFERENCE DRAWINGS SAFETY SHARE: APPROVAL DATE CONTRACT NO. SAFETY SHARE : BA6CVA1.IGR NOTICE: THIS DRAWING HAS NOT BEEN PUBLISHED AND IS THE SOLE PROPERTY OF FLUOR AND IS LENT TO THE BORROWER FOR THEIR CONFIDENTIAL USE ONLY, AND IN CONSIDERATION OF THE LOAN OF THIS DRAWING, THE BORROWER PROMISES AND AGREES TO RETURN IT UPON REQUEST AND AGREES THAT IT WILL NOT BE REPRODUCED, COPIED LENT OR OTHERWISE DISPOSED OF DIRECTLY OR INDIRECTLY, NOR USED FOR ANY OTHER PURPOSE OTHER THAN WHICH IT IS FURNISHED. NONE Apr 2011 240K-C2- C2-3320-ST-590 10" M 3320 04381 II 3320 04305 PIT 3320 04304 FV + VENDOR DWG NO 3300-25J C2-3320-ML-501 3320 04303 FIT 3320 04381 XA TOTE BIN 6" 3320 04303 FV + 16"x14" FAULT SIZE: C2-3320-SC-507 BAL MILL NO. 5 DISCHARGE TRAMP GRIZZLY NOTE 2 3320 34301 XV + NOTES: 1. MILL CAPACITY IS BASED ON NEW FEED. 2. SPACE PROVIDED FOR MANUAL SAMPLING 3. HORN FOR START UP. NOTE 1 C2-3320-ST-509 3320 04302 FV + H, P2 L, P2 C2-3330-LA-507 3320 04302 FIT 16"x14" 3320 04303 FIC C2-3330-LA-530 16"x10" 1-1/2"x1/2" C2-3330-CS-501 SAMPLE POINT LAUNDER C2-3320-SC-507 3320 04301 AV + NOTE 2 EMERGENCY BALLS FROM BALL BUCKET M 3320 04311 XA + 14" 3320 04302 FE + 3320 04302 FIC 3320 04304 FIC C2-3320-LA-501 3320 04381 HS 3320 04305 PIC 3320 04304 FE + 16"x10" NOTE 2 3320 04303 FE + C2-3330-ST-530 C2-3320-ST-520 M 3320 04304 FIT SECONDARY COLLECTOR INJECTOR, C2-3910-ZM-620 1533 3900-25J-002 PRIMARY CYCLONE FEED PRIMARY CYCLONE FEED PUMP, C2-3310-PP-501 1534 3300-25J-042 PRIMARY COLLECTOR INJECTOR, C2-3910-ZM-594 1535 3900-25J-001 MO COLLECTOR INJECTOR, C2-3910-ZM-584 1536 3900-25J-003 TEST REAGENT INJECTOR, C2-3910-ZM-695 1537 3900-25J-004 MILK OF LIME LIME DISTRIBUTION PUMPS, C2-3920-PP-093/094 1538 3900-25J-012 GRINDING BALLS BALL MILL TRANSFER CONVEYOR, C2-3320-CV-034 1539 3300-25J-053 SAMPLER SAFETY SCREEN FLOTATION SAFETY SCREEN, C2-3330-SC-505 1540 3300-25J-045 PROCESS WATER 1543 3900-25J-014 PROCESS WATER 1544 3900-25J-014 PROCESS WATER 1545 3900-25J-014 PRIMARY CYCLONE O/F BALL MILL NO.1 CYCLONE O/F SAMPLER, C2-3330-SA-501 1547 3300-25J-045 FROTHER GLYCOL INJECTOR, C2-3910-ZM-675 1549 3900-25J-005 DENSITY CONTROL, 330-DIC-04502 1551 3300-25J-045 IN-LINE ANALYZER PH-CONTROL, 1556 3300-25J-045 T4 SIZE: C2-3330-ST-530 CYCLONE U/F LAUNDER DISCHARGE BOX 3320-RL-1012-C1B-2"-N 3320-RF-1016-C1D-1"-N 3330-SL-1071-R1A-6"-N SIZE: C2-3320-ST-509 BALL MILL NO. 5 HOOD & CHUTE 3320-RL-1026-C1B-2"-N 3320-WR-1493-C1A-2"-N 3320-RC-1018-C1D-1"-N 3320-WR-1175-C1A-16"-N 3310-SLC-1070-R1A-48"-N 3320-WR-1494-C1A-1-1/2"-N 3320-WR-1171-C1A-16"-N 3320-WR-1171-C1A-16"-N SIZE: C2-3320-ST-590 BALL MILL NO. 5 TRAMP CHUTE SIZE: C2-3320-LA-501 BALL MILL NO. 5 DISCH LAUNDER 3320-RC-1136-C1D-1"-N SIZE: C2-3330-LA-530 CYCLONE U/F LAUNDER SIZE: C2-3330-LA-507 PRIMARY CYCLONE OVERFLOW LAUNDER 3330-SL-1073-R1B-48"-N 3320-WR-1172-C1A-16"-N 3330-SL-1072-R1B-16"-N SIZE:19 X 840 mm C2-3330-CS-501 PRIMARY CYCLONE CLUSTER 3320-RC-1503-C1D-1"-N 3320-RC-1097-C1D-1"-N SIZE: C2-3320-ST-520 BALL MILL NO. 5 FEED CHUTE AG KM LT ISSUED FOR CLIENT REVIEW 23-Dec-11 B RP ISSUED FOR COMBINED REVIEW 29-Jun-11 A 12/23/2011 K. MUNDY A. GUNSON W. BIE L. TAMELIN 12/23/2011 10:30:31 AM WBS: 3320 B PIPING AND INSTRUMENTATION DIAGRAM BALL MILL CIRCUITS 3300-25J-043 BALL MILL NO. 5 RSP 3320 04301 ZS OP/CL C2-3320-ZM-036 SIZE: C2-3320-ZM-036 BOLT REMOVAL TOOL NO. 2 NOTE 3 SIZE: 8.20 m X 14.6 m EGL MOTOR: 22000.00 kW C2-3320-ML-501 BALL MILL NO. 5 3320 34301 XA MISMATCH A-R 3320 34301 ZS OP/CL A-R A-R (QTY 16) ES FC ES FC ES FC FI V V FC 3330-AIC-04501 BALL MILL DISCHARGE PRIMARY CYCLONE FEED SUMP, C2-3310-BX-501 1686 3300-25J-042 3330-SL-1083-R1A-40"-N FRESH WATER 3320-LV-02307 4130 3300-25J-023 3320 34302 PI M 3320-FQI-02306 4202 3300-25J-023 3320 04306 FIT 3320 04306 FE + 3320-WF- -C1A-10"-N
  • 125.
    D 4 F B A 3 2 1 5 68 E 7 C REV. APPROVED CHK. DES. REV. DATE REVISION DESCRIPTION CLIENT LEAD ENGINEER SCALE DRAWING NUMBER CHECK DESIGN CHECK DRAWING DESIGNED BY DRAWN BY APPROVAL DATE APPROVAL DATE APPROVED CHK. DES. REV. DATE REVISION DESCRIPTION REFERENCE DRAWING No. 1:100 0 1:200 5m 10m 0 5m 10m 15m 20m 1:500 10m 0 20m 30m 40m 50m 1:1000 0 100m 50m 1:20 0 0.5m 1m 1.5m 2m 0 1:25 0.5m 1m 1.5m 1:33 1/3 2.5m 2m 0 1m 2m 3m 0 1:50 1m 2m 3m 4m 5m CAD FILE NAME: P:0CAD000SPEM** MODEL UPDATED: DWG. FILE UPDATED: MANUAL CHANGES MADE: YES NO YES NO YES NO PROJECT MANAGER ENGINEERING MANAGER AREA PROJECTENGINEER REFERENCE DRAWINGS SAFETY SHARE: APPROVAL DATE CONTRACT NO. SAFETY SHARE : BA6CVA1.IGR NOTICE: THIS DRAWING HAS NOT BEEN PUBLISHED AND IS THE SOLE PROPERTY OF FLUOR AND IS LENT TO THE BORROWER FOR THEIR CONFIDENTIAL USE ONLY, AND IN CONSIDERATION OF THE LOAN OF THIS DRAWING, THE BORROWER PROMISES AND AGREES TO RETURN IT UPON REQUEST AND AGREES THAT IT WILL NOT BE REPRODUCED, COPIED LENT OR OTHERWISE DISPOSED OF DIRECTLY OR INDIRECTLY, NOR USED FOR ANY OTHER PURPOSE OTHER THAN WHICH IT IS FURNISHED. NONE Apr 2011 240K-C2- AG KM LT ISSUED FOR CLIENT REVIEW 23-Dec-11 B RP ISSUED FOR COMBINED REVIEW 19-Jul-11 A 12/23/2011 K. MUNDY A. GUNSON W. BIE L. TAMELIN 12/23/2011 10:31:41 AM WBS: 3320 B PIPING AND INSTRUMENTATION DIAGRAM BALL MILL CIRCUITS 3300-25J-044 BALL MILL NO. 5 ANCILLARIES 3320 35512 TI 3320 35216 PAL BEARING SEGMENT #4 3320 35502 TI H, P2 BEARING SEGMENT #3 THRUST BEARING LUBE PUMP (STAND-BY) 3320 35521 PI 3320 35215 PI L, P2 H, P2 THRUST BEARING LUBE PUMP 3320 35531 PI 3320 35207 FAL BEARING SEGMENT #1 CIRCULATING PUMP (STAND-BY) 3320 35303 XA 3320 35023 LA L, P2 H, P2 CIRCULATING PUMP 3320 35511 PI LOW PRESSURE STAND-BY PUMP CONTROL BEARING SEGMENT #2 ACCUMULATOR PUMP (STAND-BY) 3320 35501 PI 3320 35008 PAL L, P2 H, P2 ACCUMULATOR PUMP P.O NO.: VENDOR DWG NO.: VENDOR: 3320 04402 TE H, P2 CIRCULATING PUMP BEARING SEGMENT #3 & #4 LUBE PUMP (STAND BY) 3320 04402 TI 3320 35022 PDI BEARING SEGMENT #3 & #4 STAND-BY PUMP CONTROL BEARING SEGMENT #3 & #4 LUBE PUMP 3320 04401 TI 3320 35018 PAL ACCUMULATOR #2 BEARING SEGMENT #1 & #2 LUBE PUMP (STAND BY) 3320 04401 TE 3320 35021 FAL ACCUMULATOR #1 BEARING SEGMENT #1 & #2 LUBE PUMP 3320 04404 TE 3320 35019 PAL P2 CIRCULATING PUMP (STAND-BY) 3320 04404 TI 3320 35023 TI P2 CIRCULATING PUMP 3320 04405 FAL ACCUMULATOR #2 P2 ACCUMULATOR PUMP (STAND-BY) 3320 04405 FISL ACCUMULATOR PUMP CONTROL ACCUMULATOR PUMP CONTROL BEARING SEGMENT #3 & #4 LUBE PUMP (STAND BY) 3320 04403 TI 3320 35009 PAL BEARING SEGMENT #1 & #2 STAND-BY PUMP CONTROL BEARING SEGMENT #3 & #4 LUBE PUMP 3320 04403 TE 3320 35016 PAL OIL TANK BEARING SEGMENT #1 & #2 LUBE PUMP (STAND BY) LUBE TANK OIL 3320 35017 PI P2 BEARING SEGMENT #1 & #2 LUBE PUMP AIR GAP SENSORS A-H, J 3320 35007 PI LUBE OIL FILTER CYCLOCONVERTER COOLING WATER PUMP (STAND BY) H, P2 3320 35020 PI HH, P2 CYCLOCONVERTER COOLING WATER PUMP H, P2 P2 P2 FAN #2 RIGHT 3320 35006 PAL OIL TANK FAN #2 LEFT ACCUMULATOR PUMP H, P2 CIRCULATING STAND-BY PUMP CONTROL FAN #1 RIGHT CIRCULATING STAND-BY PUMP CONTROL CIRCULATING OIL FAN #1 LEFT COMMON ALARM 3320 35206 PDI LOW PRESSURE OIL OVERPRESSURE FAN RIGHT P2 LUBE OIL FILTER OVERPRESSURE FAN LEFT LUBE TANK OIL P2 MILL NO. 5 CYCLOCONVERTER CONTROL 3320 35220 XA COMMON ALARM LEAK CONTROL H, P2 P2 MILL NO. 5 MOTOR CONTROL 3320 35025 XA P2 P2 MILL NO.5 FLOATING BEARING 3320 35210 PAL P2 MILL NO.5 FIXED BEARING 3320 35209 TI H, P2 MILL NO.5 FLOATING BEARING LUBE UNIT CIRCULATING OIL L, P2 MILL NO.5 FIXED BEARING LUBE UNIT 3320 35208 LALL P2 BEARING SEGMENT #1 3320 35205 PAL P2 BEARING SEGMENT #2 P2 CIRCULATING PUMP BEARING SEGMENT #3 3320 34915 LAH L, P2 H, P2 BEARING SEGMENT #1 3320-WF-1395-C1A-2"-N A, B L, P2 H, P2 LL, P2 BEARING SEGMENT #2 3320-WF-1392-C1A-2"-N 3320 34914 MI BEARING SEGMENT #1 & #2 STAND-BY PUMP CONTROL BEARING SEGMENT #3 3320-WF-1394-C1A-4"-N 3320 35104 TI MILL BRAKE CONTROLS THRUST BEARING SEGMENT #1 3320-WF-1393-C1A-4"-N 3320 35103 FI P2 THRUST BEARING SEGMENT #2 3320 35102 LAH CIRCULATING WATER THRUST BEARING SEGMENT #3 3320 35434 TI COOLING WATER PUMPS BEARING SEGMENT #4 3320 35424 TI EXPANSION TANK BEARING SEGMENT #4 3320 35414 TI ACCUMULATOR #1 THRUST BEARING SEGMENT #4 3320 35404 TI BEARING SEGMENT #3 & #4 STAND-BY PUMP CONTROL L, P2 H, P2 3320 35433 TI 3320 35311 XA L, P2 H, P2 3320 35423 TI 3320 35301 XA L, P2 H, P2 3320 35413 TI 3320 35201 XA L, P2 H, P2 3320 35403 TI 3320 35211 XA L, P2 H, P2 3320 35110 TI 3320 35202 XA L, P2 H, P2 3320 35109 TI 3320 35212 XA L, P2 H, P2 COMMON ALARM 3320 35108 CI 3320 35203 XA L, P2 H, P2 3320 34910 XA 3320 35107 PI 3320 35213 XA L, P2 H, P2 3320 35106 LI 3320 35214 XA H, P2 3320 35105 TI 3320 35204 XA H, P2 3320 35432 PI 3320 35015 XA H, P2 3320 35422 PI 3320 35005 XA H, P2 3320 35412 PI 3320 35014 XA WATER LEAK SENSOR LEFT 3320 35402 PI 3320 35003 XA COOLING AIR DISCHARGE A-B BEARING SEGMENT #1 3320 35012 XA COOLING AIR INTAKE A-B 3320 35401 SI 3320 35002 XA SEALING SYSTEM WEAR A-B BEARING SEGMENT #2 3320 35004 XA STATOR WINDING A-F 3320 35411 SI 3320 35013 XA COOLING WATER IN BEARING SEGMENT #4 3320 35011 XA COOLING WATER 3320 35431 SI 3320 35001 XA H, P2 HH, P2 COMMON ALARM BEARING SEGMENT #3 3320 35111 XA L, P2 LL, P2 3320 35110 XA 3320 35421 SI 3320 35101 XA WATER LEAK SENSOR RIGHT 3320 35314 LALL 3320 34913 XA COOLANT FROM HEAT EXCHANGER 3320 35315 TA 3320 34912 XA COOLANT TO HEAT EXCHANGER V 3320 35314 LAL 3320 34911 XA H, P2 HH, P2 V 3320 35316 PDAH 3320 34903 XA L, P2 V 3320 35317 ZL 3320 34902 XA L, P2 LL, P2 V 3320 35307 ZL 3320 34901 XA COOLING WATER OUT V 3320 35306 PDAH 3320 34904 TI H, P2 HH, P2 3320 35305 TA P.O NO.: VENDOR DWG NO.: VENDOR: 3320 34905 TI H, P2 HH, P2 3320 35304 LALL 3320 34906 TI BEARING SEGMENT #4 P.O NO.: VENDOR DWG NO.: VENDOR: 3320 35304 LAL P2 BEARING SEGMENT #3 3320 35532 TI 3320 34907 LAH BEARING SEGMENT #4 P.O NO.: VENDOR DWG NO.: VENDOR: 3320 35522 TI 3320 34908 XA BEARING SEGMENT #3 3320-WF-1396-C1A-2"-N 3320 35533 SI 3320 34909 ZA BEARING SEGMENT #2 3320-WF-1389-C1A-4"-N P.O NO.: VENDOR DWG NO.: VENDOR: 3320 35523 SI 3320 35219 PAL BEARING SEGMENT #1 3320-WF-1388-C1A-4"-N 3320 35513 SI L,P2 LL, P2 BEARING SEGMENT #1 3320-WF-1387-C1A-2"-N COMMON ALARM COMMON ALARM P.O NO.: VENDOR DWG NO.: VENDOR: 3320 35503 SI 3320 35218 PAL BEARING SEGMENT #2 3320-WF-1391-C1A-2"-N 3320 35510 XA 3320 35410 XA H, P2 HH, P2 3320 35217 PAL L, P2 H, P2 3320-WF-1390-C1A-2"-N P.O NO.: VENDOR DWG NO.: VENDOR: L, P2 H, P2 L, P2 H, P2 L, P2 H, P2 L, P2 H, P2 HH, P1 C2-3320-ML-501 CLOSED LOOP CWR GRINDING AREA HEAT EXCHANGERS, 3889 3300-25J-057 CLOSED LOOP CWR GRINDING AREA HEAT EXCHANGERS, 3887 3300-25J-057 CLOSED LOOP CWR GRINDING AREA HEAT EXCHANGERS, 3888 3300-25J-057 CLOSED LOOP CWR GRINDING AREA HEAT EXCHANGERS, 3885 3300-25J-057 CLOSED LOOP CWR GRINDING AREA HEAT EXCHANGERS, 3886 3300-25J-057 C2-3820-HX-770-771/772 C2-3820-HX-770-771/772 C2-3820-HX-770-771/772 C2-3820-HX-770-771/772 C2-3820-HX-770-771/772 CLOSED LOOP CWR GRINDING COOLING SYSTEM PUMPS, C2-3320-PP-765/766 3931 3300-25J-056 CLOSED LOOP CWR GRINDING COOLING SYSTEM PUMPS, C2-3320-PP-765/766 3930 3300-25J-056 CLOSED LOOP CWR GRINDING COOLING SYSTEM PUMPS, C2-3320-PP-765/766 3933 3300-25J-056 CLOSED LOOP CWR GRINDING COOLING SYSTEM PUMPS, C2-3320-PP-765/766 3932 3300-25J-056 CLOSED LOOP CWR GRINDING COOLING SYSTEM PUMPS, C2-3320-PP-765/766 3934 3300-25J-056
  • 126.
    D 4 F B A 3 2 1 5 68 E 7 C REV. APPROVED CHK. DES. REV. DATE REVISION DESCRIPTION CLIENT LEAD ENGINEER SCALE DRAWING NUMBER CHECK DESIGN CHECK DRAWING DESIGNED BY DRAWN BY APPROVAL DATE APPROVAL DATE APPROVED CHK. DES. REV. DATE REVISION DESCRIPTION REFERENCE DRAWING No. 1:100 0 1:200 5m 10m 0 5m 10m 15m 20m 1:500 10m 0 20m 30m 40m 50m 1:1000 0 100m 50m 1:20 0 0.5m 1m 1.5m 2m 0 1:25 0.5m 1m 1.5m 1:33 1/3 2.5m 2m 0 1m 2m 3m 0 1:50 1m 2m 3m 4m 5m CAD FILE NAME: P:0CAD000SPEM** MODEL UPDATED: DWG. FILE UPDATED: MANUAL CHANGES MADE: YES NO YES NO YES NO PROJECT MANAGER ENGINEERING MANAGER AREA PROJECTENGINEER REFERENCE DRAWINGS SAFETY SHARE: APPROVAL DATE CONTRACT NO. SAFETY SHARE : BA6CVA1.IGR NOTICE: THIS DRAWING HAS NOT BEEN PUBLISHED AND IS THE SOLE PROPERTY OF FLUOR AND IS LENT TO THE BORROWER FOR THEIR CONFIDENTIAL USE ONLY, AND IN CONSIDERATION OF THE LOAN OF THIS DRAWING, THE BORROWER PROMISES AND AGREES TO RETURN IT UPON REQUEST AND AGREES THAT IT WILL NOT BE REPRODUCED, COPIED LENT OR OTHERWISE DISPOSED OF DIRECTLY OR INDIRECTLY, NOR USED FOR ANY OTHER PURPOSE OTHER THAN WHICH IT IS FURNISHED. NONE Apr 2011 240K-C2- 3330 34502 XV + FI 3330 04501 AE 3330 04501 AIT 3330 04501 AIC 3330 04502 DX 3330 04502 DE 3330 04502 DIT 3330 04502 DIC SHIFT SAMPLE SHIFT SAMPLE 3330 34501 XV + FI 3330 04511 AE 3330 04511 AIT 3330 04511 AIC 3330 04512 DX 3330 04512 DE 3330 04512 DIT 3330 04512 DIC VENDOR DWG 3300-25J- VENDOR DWG 3300-25J- V C2-3330-AZ-501 C2-3330-AZ-502 C2-3330-ST-705 C2-3330-SA-501 C2-3330-ST-706 C2-3330-SA-601 1-1/2"x1/2" 1-1/2"x1/2" 3% SLOPE 3% SLOPE P.O NO.: VENDOR DWG NO.: VENDOR: P.O NO.: VENDOR DWG NO.: VENDOR: C2-3330-SC-605 C2-3330-SC-505 PRIMARY CYCLONE O/F ROUGHER CELL NO.1 ROW NO.5, C2-3410-CF-501 1123 3400-25J-014 FLOW CONTROL, 3320-FIC-04302 1551 3300-25J-043 PRIMARY CYCLONE O/F ROUGHER CELL NO.1 ROW NO.6, C2-3410-CF-601 1134 3400-25J-014 PRIMARY CYCLONE O/F ROUGHER CELL NO.1 ROW NO.5, C2-3410-CF-501 1136 3400-25J-014 FLOW CONTROL, 3320-FIC-04702 1578 3300-25J-047 C2-3320-LA-530 LIME CONTROL VALVE, 3320-AV-04701 1565 3300-25J-047 PRIMARY CYCLONE O/F PRIMARY CYCLONE O/F LAUNDER, C2-3330-LA-607 1573 3300-25J-047 SAFETY SCREEN DUMP PRIMARY CYCLONE U/F LAUNDER, C2-3330-LA-630 1563 3300-25J-047 PRIMARY CYCLONE O/F ROUGHER CELL NO.1 ROW NO.6, C2-3410-CF-601 1133 3400-25J-014 LIME CONTROL VALVE, 3320-AV-04301 1556 3300-25J-043 PRIMARY CYCLONE O/F PRIMARY CYCLONE O/F LAUNDER, C2-3330-LA-507 1547 3300-25J-043 SAFETY SCREEN DUMP PRIMARY CYCLONE U/F LAUNDER, C2-3330-LA-530 1540 3300-25J-043 FRESH WATER 2163 3300-25J-042 SIZE: C2-3330-ST-706 BALL MILL NO.6 O/F SAMPLER DISCHARGE CHUTE ES SIZE: C2-3330-AZ-501 GRINDING LINES NO.5 & NO.6 O/F PARTICLE SIZE ANALYZER SIZE: C2-3330-ST-705 BALL MILL NO.5 O/F SAMPLER DISCHARGE CHUTE SIZE: C2-3330-SC-505 FLOTATION SAFETY SCREEN NO.1 AI SIZE: C2-3330-AZ-502 GRINDING LINES NO.5 & NO.6 O/F INSTREAM ANALYZER ES 3330-SL-1078-R1A-4"-N AI SIZE: C2-3330-SA-601 BALL MILL NO.6 CYCLONE O/F SAMPLER SIZE: C2-3330-SC-605 FLOTATION SAFETY SCREEN NO.2 ES 3330-SL-1075-R1A-4"-N 3330-SL-1081-R1B-40"-N 3330-SL-1076-R1A-4"-N 3330-SL-1077-R1A-4"-N 3330-WF-1397-C1A-1-1/2"-N SIZE: C2-3330-SA-501 BALL MILL NO.5 CYCLONE O/F SAMPLER AG KM LT ISSUED FOR CLIENT REVIEW 23-Dec-11 B RP ISSUED FOR COMBINED REVIEW 29-Jun-11 A 12/23/2011 K. MUNDY A. GUNSON W. BIE L. TAMELIN 12/21/2011 2:29:04 PM WBS: 3330 B PIPING AND INSTRUMENTATION DIAGRAM BALL MILL CLASSIFICATION 3300-25J-045 MILLS NO. 5 & 6 SAMPLING 3330-SL-1085-R1B-40"-N FRESH WATER 3262 3300-25J-046 3330 34502 XA 3330 34502 XA MISMATCH MISMATCH PH PH 3330-WF-1174-C1A-1-1/2"-N V V INSTRUMENT AIR DISTRIBUTION 3516 3900-25J-022 M 3330 34502 HS 3330 34502 ZS ES V3 3330 34501 HS 3330 34501 ZS ES M V3 3960-AI-1065-G1A-1"-N 3330-WF-1114-C1A-4"-N 3330-SL-1082-R1A-40"-N 3330-SL-1074-R1B-48"-N 3320-SL-1072-R1B-48"-N 3330-SL-1083-R1A-40"-N 3330-SL-1079-C1B-4"-N 3330-SL-1080-C1B-4"-N
  • 127.
    T3 3310 04604 XA 3310 04605 XA 3310 04681 H TI 3310 04603 FI L, P2 LL,P1 M 3310 04606 PI 3310 04603 PI L, P1 3310 04681 II 3310 04602 LIC 3310 04602 LT 3310 04608 XA M 3310 04601 FIT 3310 04681 H TE AP 3310 04602 LE 3310 04608 ZS 3310 04607 PI 3310 04601 DIT 3310 04603 PIT 3310 04601 DX M 3310 04681 XA 3310 04603 FIT 3310 04601 FI 3310 04602 LI 3310 04601 DI AP 3310 04681 G TE 3310 04681 G TI BRG FRONT H, P2 HH,P1 3310 04681 HS J/SP 3310 04601 DE 3310 04601 WY 3310 04604 ZS 3310 04608 B HS OP/CL L/R 3310 04605 ZS 3310 04601 WI GLAND SEAL WATER 2949 3900-25J-023 FRESH WATER 3263 3300-25J-045 CRUSHING PLANT COARSE SCREENING EFFLUENT PUMPS, 3710 3200-25J-019 EFFLUENT BALL MILL NO.6 DISCHARGE BALL MILL NO.6 DISCHARGE LAUNDER, C2-3320-LA-601 1719 3300-25J-047 PROCESS WATER 1715 3900-25J-014 BALL MILL SCREEN U/S BALL MILL FEED SCREEN, C2-3310-SC-602 1720 3300-25J-018 PROCESS WATER 1716 3900-25J-014 INSTRUMENT AIR DISTRIBUTION 3518 3900-25J-022 BALL MILL SCREEN U/S BALL MILL FEED SCREEN, C2-3310-SC-601 1721 3300-25J-018 PRIMARY CYCLONE FEED PRIMARY CYCLONE, C2-3330-CS-601 1729 3300-25J-047 OP/CL OP/CL MISMATCH MISMATCH NOTE 3 (LAUNDER) NOTE 2 MIN NOTES: 1. DRAIN SEQUENCE WILL OPEN THE DRAIN VALVE AFTER A SET PERIOD OF INACTIVITY. 2. WILL OPERATE IN ACCORDANCE WITH THE DRAIN PROCEDURE AS DESCRIBED IN THE CONTROL PHILOSOPHY. 3. DIRECT DRAIN LINES TOWARDS AREA SPILLAGE PUMP. 4. IN ADDITION TO THE STANDARD MAINTENANCE DATA, THIS WILL ALSO CAPTURE THE PUMP LIFE VS THE MASS FLOW TROUGH THE PUMP. 5. DELETED 6. CYCLONE FEED PUMP FLOW SWITCHES, PRESSURE SWITCHES AND ISOLATION VALVES TO BE LOCATED ON THE OPERATING LEVEL. 7. SPACE PROVIDED FOR MANUAL SAMPLING. MIN MASS FLOW MIN NOTE 3 C2-3240-PP-023/024 AFD H, P2 L, P2 NOTE 2 FAULT BRG REAR H, P2 HH,P1 OP/CL MISMATCH NOTE 7 36" 52"x36" C2-3310-BX-601 3310 04603 FE + FI 3310 04605 XV + 3310 04604 XV + 1-1/2" 3310 04601 FE + TO FLOOR 3"x2" FI 4"x1/2" V V 1-1/2" 3"x2" C2-3310-PP-601 TO FLOOR 3310 04608 XV + AG KM LT ISSUED FOR CLIENT REVIEW 23-Dec-11 B RP ISSUED FOR COMBINED REVIEW 29-Jun-11 A 12/23/2011 K. MUNDY A. GUNSON W. BIE L. TAMELIN 12/23/2011 10:34:10 AM WBS: 3310 B PIPING AND INSTRUMENTATION DIAGRAM BALL MILL FEED 3300-25J-046 PRIMARY CYCLONE FEED SUMP NO. 6 2"x1-1/4" FI 3310-WF-1114-C1A-4"-N 3310-SL-1807-C1B-4"-N 3310-WF-1489-C1A-8"-N 3310-WG-1025-C1A-2"-N 3310-SL-1090-R1B-48"-N SIZE: MATERIAL: MOTOR: C2-3310-PP-601 PRIMARY CYCLONE FEED PUMP NO.6 (AFD) 3310-WR-1495-C1A-8"-N ES 3310-WF-1398-C1A-1-1/2"-N 3310-SL-1089-R1B-52"-N SIZE: MATERIAL: CAPACITY:290.0 m^3 TRIM:3310-SL-1086-C1B C2-3310-BX-601 BALL MILL CYCLONE FEED SUMP ES 3310-WR-1168-C1A-8"-N 3310-WR-1134-C1A-8"-N ES ES D 4 F B A 3 2 1 5 6 8 E 7 C REV. APPROVED CHK. DES. REV. DATE REVISION DESCRIPTION CLIENT LEAD ENGINEER SCALE DRAWING NUMBER CHECK DESIGN CHECK DRAWING DESIGNED BY DRAWN BY APPROVAL DATE APPROVAL DATE APPROVED CHK. DES. REV. DATE REVISION DESCRIPTION REFERENCE DRAWING No. 1:100 0 1:200 5m 10m 0 5m 10m 15m 20m 1:500 10m 0 20m 30m 40m 50m 1:1000 0 100m 50m 1:20 0 0.5m 1m 1.5m 2m 0 1:25 0.5m 1m 1.5m 1:33 1/3 2.5m 2m 0 1m 2m 3m 0 1:50 1m 2m 3m 4m 5m CAD FILE NAME: P:0CAD000SPEM** MODEL UPDATED: DWG. FILE UPDATED: MANUAL CHANGES MADE: YES NO YES NO YES NO PROJECT MANAGER ENGINEERING MANAGER AREA PROJECTENGINEER REFERENCE DRAWINGS SAFETY SHARE: APPROVAL DATE CONTRACT NO. SAFETY SHARE : BA6CVA1.IGR NOTICE: THIS DRAWING HAS NOT BEEN PUBLISHED AND IS THE SOLE PROPERTY OF FLUOR AND IS LENT TO THE BORROWER FOR THEIR CONFIDENTIAL USE ONLY, AND IN CONSIDERATION OF THE LOAN OF THIS DRAWING, THE BORROWER PROMISES AND AGREES TO RETURN IT UPON REQUEST AND AGREES THAT IT WILL NOT BE REPRODUCED, COPIED LENT OR OTHERWISE DISPOSED OF DIRECTLY OR INDIRECTLY, NOR USED FOR ANY OTHER PURPOSE OTHER THAN WHICH IT IS FURNISHED. NONE Apr 2011 240K-C2- 3310-AI-1075-G1A-1"-N C2-3300-HX-770/771/772 FRESH WATER GRINDING AREA HEAT EXCHANGERS, 3713 3300-25J-054
  • 128.
    D 4 F B A 3 2 1 5 68 E 7 C REV. APPROVED CHK. DES. REV. DATE REVISION DESCRIPTION CLIENT LEAD ENGINEER SCALE DRAWING NUMBER CHECK DESIGN CHECK DRAWING DESIGNED BY DRAWN BY APPROVAL DATE APPROVAL DATE APPROVED CHK. DES. REV. DATE REVISION DESCRIPTION REFERENCE DRAWING No. 1:100 0 1:200 5m 10m 0 5m 10m 15m 20m 1:500 10m 0 20m 30m 40m 50m 1:1000 0 100m 50m 1:20 0 0.5m 1m 1.5m 2m 0 1:25 0.5m 1m 1.5m 1:33 1/3 2.5m 2m 0 1m 2m 3m 0 1:50 1m 2m 3m 4m 5m CAD FILE NAME: P:0CAD000SPEM** MODEL UPDATED: DWG. FILE UPDATED: MANUAL CHANGES MADE: YES NO YES NO YES NO PROJECT MANAGER ENGINEERING MANAGER AREA PROJECTENGINEER REFERENCE DRAWINGS SAFETY SHARE: APPROVAL DATE CONTRACT NO. SAFETY SHARE : BA6CVA1.IGR NOTICE: THIS DRAWING HAS NOT BEEN PUBLISHED AND IS THE SOLE PROPERTY OF FLUOR AND IS LENT TO THE BORROWER FOR THEIR CONFIDENTIAL USE ONLY, AND IN CONSIDERATION OF THE LOAN OF THIS DRAWING, THE BORROWER PROMISES AND AGREES TO RETURN IT UPON REQUEST AND AGREES THAT IT WILL NOT BE REPRODUCED, COPIED LENT OR OTHERWISE DISPOSED OF DIRECTLY OR INDIRECTLY, NOR USED FOR ANY OTHER PURPOSE OTHER THAN WHICH IT IS FURNISHED. NONE Apr 2011 240K-C2- TOTE BIN 3320 04703 FV + 3320 04781 HS 3320 04704 FIC 3320 04704 FE + C2-3330-LA-607 C2-3320-LA-601 H, P2 L, P2 LAUNDER FAULT 16"x10" C2-3330-ST-630 NOTE 2 C2-3330-LA-630 3320 04705 PIT 3320 04704 FIT C2-3320-ST-609 3320 04781 II 3320 04711 XA + 3320 04703 FIC 3320 04702 FIC 10" 3320 04704 FV + 3320 04703 FE + 3320 34701 XV + 3320 04781 XA 3320 04702 FE + NOTES: 1. MILL CAPACITY IS BASED ON NEW FEED. 2. SPACE PROVIDED FOR MANUAL SAMPLING 3. HORN FOR START UP. 16"x14" NOTE 1 C2-3320-ST-690 EMERGENCY BALLS FROM BALL BUCKET 16"x14" SIZE: C2-3320-SC-607 BAL MILL NO. 6 DISCH TRAMP GRIZZLY NOTE 2 14" 3320 04703 FIT 6" 3320 04705 PIC AP 3320 04701 AV + M M C2-3330-CS-601 SAMPLE POINT 3320 04702 FIT C2-3320-SC-607 C2-3320-ML-601 1-1/2"x1/2" A TO N VENDOR C2-3320-ST-620 M 3320 04702 FV + NOTE 2 16"x10" SECONDARY COLLECTOR INJECTOR, C2-3910-ZM-621 1558 3900-25J-002 PRIMARY COLLECTOR INJECTOR, C2-3910-ZM-595 1559 3900-25J-001 MO COLLECTOR INJECTOR, C2-3910-ZM-583 1560 3900-25J-003 MILK OF LIME LIME DISTRIBUTION PUMPS, C2-3920-PP-093/094 1561 3900-25J-012 TEST REAGENT INJECTOR, C2-3910-ZM-694 1562 3900-25J-004 SAMPLER SAFETY SCREEN FLOTATION SAFETY SCREEN, C2-3330-SC-605 1563 3300-25J-045 PRIMARY CYCLONE FEED PRIMARY CYCLONE FEED PUMP, C2-3310-PP-601 1564 3300-25J-046 IN-LINE ANALYZER PH-CONTROL, 1565 3300-25J-045 GRINDING BALLS BALL MILL TRANSFER CONVEYOR, C2-3320-CV-034 1566 3300-25J-053 PROCESS WATER 1570 3900-25J-014 PROCESS WATER 1571 3900-25J-014 PROCESS WATER 1572 3900-25J-014 PRIMARY CYCLONE O/F BALL MILL NO.1 CYCLONE O/F SAMPLER, C2-3330-SA-601 1573 3300-25J-045 FROTHER GLYCOL INJECTOR, C2-3910-ZM-676 1574 3900-25J-005 DENSITY CONTROL, 3330-DIC-04512 1578 3300-25J-045 T4 3320-WR-1166-C1A-16"-N SIZE: C2-3330-ST-630 CYCLONE U/F LAUNDER DISCH BOX 3320-RC-1054-C1D-1"-N 3320-RL-1027-C1B-2"-N SIZE: C2-3320-ST-690 BALL MILL NO. 6 TRAMP CHUTE 3320-WR-1497-C1A-1-1/2"-N 3320-WR-1496-C1A-2"-N 3320-WR-1166-C1A-16"-N 3320-RC-1019-C1D-1"-N 3330-SL-1091-R1A-6"-N 3320-RC-1096-C1D-1"-N SIZE: C2-3330-LA-607 PRIMARY CYCLONE O/F LAUNDER SIZE: C2-3320-LA-601 BALL MILL NO. 6 DISCH LAUNDER 3320-RL-1013-C1B-2"-N 3320-RC-1137-C1D-1"-N SIZE: C2-3320-ST-609 BALL MILL NO. 6 HOOD & CHUTE 3330-SL-1074-R1B-16"-N SIZE: C2-3320-ST-620 BALL MILL NO. 6 FEED CHUTE 3320-WR-1170-C1D-16"-N 3330-SL-1090-R1A-48"-N SIZE:16 X 840 mm C2-3330-CS-601 PRIMARY CYCLONE CLUSTER 3330-SL-1092-R1B-48"-N SIZE: C2-3330-LA-630 CYCLONE U/F LAUNDER 3320-WR-1167-C1A-16"-N 3320-RF-1017-C1D-1"-N AG KM LT ISSUED FOR CLIENT REVIEW 23-Dec-11 B RP ISSUED FOR COMBINED REVIEW 29-Jun-11 A 12/23/2011 K. MUNDY A. GUNSON W. BIE L. TAMELIN 12/22/2011 4:35:14 PM WBS: 3320 B PIPING AND INSTRUMENTATION DIAGRAM BALL MILL CIRCUITS 3300-25J-047 BALL MILL NO. 6 RSP 3320 04701 ZS OP/CL SIZE: 8.2 m 14.6 m EGL MOTOR: 22000.00 kW C2-3320-ML-601 BALL MILL NO. 6 NOTE 3 3320 34701 XA MISMATCH A-R 3320 34701 ZS A-R (QTY 16) A-R OP/CL BALL MILL DISCHARGE PRIMARY CYCLONE FEED SUMP, C2-3310-BX-501 1719 3300-25J-046 ES FC FC ES ES FC FI V V FC 3330-AIC-04511 3320-SL-1082-R1A-40"-N 3320 34702 PI FRESH WATER 3320-LV-02307 4128 3300-25J-023 3320-WF- -C1A-10"-N 3320-FQI-02306 4188 3300-25J-023 M 3320 04706 FIT 3320 04706 FE +
  • 129.
    D 4 F B A 3 2 1 5 68 E 7 C REV. APPROVED CHK. DES. REV. DATE REVISION DESCRIPTION CLIENT LEAD ENGINEER SCALE DRAWING NUMBER CHECK DESIGN CHECK DRAWING DESIGNED BY DRAWN BY APPROVAL DATE APPROVAL DATE APPROVED CHK. DES. REV. DATE REVISION DESCRIPTION REFERENCE DRAWING No. 1:100 0 1:200 5m 10m 0 5m 10m 15m 20m 1:500 10m 0 20m 30m 40m 50m 1:1000 0 100m 50m 1:20 0 0.5m 1m 1.5m 2m 0 1:25 0.5m 1m 1.5m 1:33 1/3 2.5m 2m 0 1m 2m 3m 0 1:50 1m 2m 3m 4m 5m CAD FILE NAME: P:0CAD000SPEM** MODEL UPDATED: DWG. FILE UPDATED: MANUAL CHANGES MADE: YES NO YES NO YES NO PROJECT MANAGER ENGINEERING MANAGER AREA PROJECTENGINEER REFERENCE DRAWINGS SAFETY SHARE: APPROVAL DATE CONTRACT NO. SAFETY SHARE : BA6CVA1.IGR NOTICE: THIS DRAWING HAS NOT BEEN PUBLISHED AND IS THE SOLE PROPERTY OF FLUOR AND IS LENT TO THE BORROWER FOR THEIR CONFIDENTIAL USE ONLY, AND IN CONSIDERATION OF THE LOAN OF THIS DRAWING, THE BORROWER PROMISES AND AGREES TO RETURN IT UPON REQUEST AND AGREES THAT IT WILL NOT BE REPRODUCED, COPIED LENT OR OTHERWISE DISPOSED OF DIRECTLY OR INDIRECTLY, NOR USED FOR ANY OTHER PURPOSE OTHER THAN WHICH IT IS FURNISHED. NONE Apr 2011 240K-C2- AG KM LT ISSUED FOR CLIENT REVIEW 23-Dec-11 B RP ISSUED FOR COMBINED REVIEW 19-Jul-11 A 12/24/2011 K. MUNDY A. GUNSON W. BIE L. TAMELIN 12/23/2011 10:36:21 AM WBS: 3320 B PIPING AND INSTRUMENTATION DIAGRAM BALL MILL CIRCUITS 3300-25J-051 BALL MILL NO. 6 ANCILLARIES 3320 36212 TI 3320 35916 PAL BEARING SEGMENT #4 3320 36202 TI H, P2 BEARING SEGMENT #3 THRUST BEARING LUBE PUMP (STAND-BY) 3320 36221 PI 3320 35915 PI L, P2 H, P2 THRUST BEARING LUBE PUMP 3320 36231 PI 3320 35907 FAL BEARING SEGMENT #1 CIRCULATING PUMP (STAND-BY) 3320 36003 XA 3320 35723 LA L, P2 H, P2 CIRCULATING PUMP 3320 36211 PI LOW PRESSURE STAND-BY PUMP CONTROL BEARING SEGMENT #2 ACCUMULATOR PUMP (STAND-BY) 3320 36201 PI 3320 35708 PAL L, P2 H, P2 ACCUMULATOR PUMP P.O NO.: VENDOR DWG NO.: VENDOR: 3320 05102 TE H, P2 CIRCULATING PUMP BEARING SEGMENT #3 & #4 LUBE PUMP (STAND BY) 3320 05102 TI 3320 35722 PDI BEARING SEGMENT #3 & #4 STAND-BY PUMP CONTROL BEARING SEGMENT #3 & #4 LUBE PUMP 3320 05101 TI 3320 35718 PAL ACCUMULATOR #2 BEARING SEGMENT #1 & #2 LUBE PUMP (STAND BY) 3320 05101 TE 3320 35721 FAL ACCUMULATOR #1 BEARING SEGMENT #1 & #2 LUBE PUMP 3320 05104 TE 3320 35719 PAL P2 CIRCULATING PUMP (STAND-BY) 3320 05104 TI 3320 35723 TI P2 CIRCULATING PUMP 3320 05105 FAL ACCUMULATOR #2 P2 ACCUMULATOR PUMP (STAND-BY) 3320 05105 FISL ACCUMULATOR PUMP CONTROL ACCUMULATOR PUMP CONTROL BEARING SEGMENT #3 & #4 LUBE PUMP (STAND BY) 3320 05103 TI 3320 35709 PAL BEARING SEGMENT #1 & #2 STAND-BY PUMP CONTROL BEARING SEGMENT #3 & #4 LUBE PUMP 3320 05103 TE 3320 35716 PAL OIL TANK BEARING SEGMENT #1 & #2 LUBE PUMP (STAND BY) LUBE TANK OIL 3320 33217 PI P2 BEARING SEGMENT #1 & #2 LUBE PUMP AIR GAP SENSORS A-H, J 3320 35707 PI LUBE OIL FILTER CYCLOCONVERTER COOLING WATER PUMP (STAND BY) H, P2 3320 35720 PI HH, P2 CYCLOCONVERTER COOLING WATER PUMP H, P2 P2 P2 FAN #2 RIGHT 3320 35706 PAL OIL TANK FAN #2 LEFT ACCUMULATOR PUMP H, P2 CIRCULATING STAND-BY PUMP CONTROL FAN #1 RIGHT CIRCULATING STAND-BY PUMP CONTROL CIRCULATING OIL FAN #1 LEFT COMMON ALARM 3320 35906 PDI LOW PRESSURE OIL OVERPRESSURE FAN RIGHT P2 LUBE OIL FILTER OVERPRESSURE FAN LEFT LUBE TANK OIL P2 MILL NO. 6 CYCLOCONVERTER CONTROL 3320 35920 XA COMMON ALARM LEAK CONTROL H, P2 P2 MILL NO. 6 MOTOR CONTROL 3320 35725 XA P2 P2 MILL NO.6 FLOATING BEARING 3320 35910 PAL P2 MILL NO.6 FIXED BEARING 3320 35909 TI H, P2 MILL NO.6 FLOATING BEARING LUBE UNIT CIRCULATING OIL L, P2 MILL NO.6 FIXED BEARING LUBE UNIT 3320 35908 LALL P2 BEARING SEGMENT #1 3320 35905 PAL P2 BEARING SEGMENT #2 P2 CIRCULATING PUMP BEARING SEGMENT #3 3320 35615 LAH L, P2 H, P2 BEARING SEGMENT #1 3320-WF-1407-C1A-2"-N A, B L, P2 H, P2 LL, P2 BEARING SEGMENT #2 3320-WF-1404-C1A-2"-N 3320 35614 MI BEARING SEGMENT #1 & #2 STAND-BY PUMP CONTROL BEARING SEGMENT #3 3320-WF-1406-C1A-4"-N 3320 35804 TI MILL BRAKE CONTROLS THRUST BEARING SEGMENT #1 3320-WF-1405-C1A-4"-N 3320 35803 FI P2 THRUST BEARING SEGMENT #2 3320 35802 LAH CIRCULATING WATER THRUST BEARING SEGMENT #3 3320 36134 TI COOLING WATER PUMPS BEARING SEGMENT #4 3320 36124 TI EXPANSION TANK BEARING SEGMENT #4 3320 36114 TI ACCUMULATOR #1 THRUST BEARING SEGMENT #4 3320 36104 TI BEARING SEGMENT #3 & #4 STAND-BY PUMP CONTROL L, P2 H, P2 3320 36133 TI 3320 36011 XA L, P2 H, P2 3320 36123 TI 3320 36001 XA L, P2 H, P2 3320 36113 TI 3320 35901 XA L, P2 H, P2 3320 36103 TI 3320 35911 XA L, P2 H, P2 3320 35810 TI 3320 35902 XA L, P2 H, P2 3320 35809 TI 3320 35912 XA L, P2 H, P2 COMMON ALARM 3320 35808 CI 3320 35903 XA L, P2 H, P2 3320 35610 XA 3320 35807 PI 3320 35913 XA L, P2 H, P2 3320 35806 LI 3320 3345914 XA H, P2 3320 35805 TI 3320 35904 XA H, P2 3320 36132 PI 3320 35715 XA H, P2 3320 36122 PI 3320 35705 XA H, P2 3320 36112 PI 3320 35714 XA WATER LEAK SENSOR LEFT 3320 36102 PI 3320 35703 XA COOLING AIR DISCHARGE A-B BEARING SEGMENT #1 3320 35712 XA COOLING AIR INTAKE A-B 3320 36101 SI 3320 35702 XA SEALING SYSTEM WEAR A-B BEARING SEGMENT #2 3320 35704 XA STATOR WINDING A-F 3320 36111 SI 3320 35713 XA COOLING WATER IN BEARING SEGMENT #4 3320 35711 XA COOLING WATER 3320 36131 SI 3320 35701 XA H, P2 HH, P2 COMMON ALARM BEARING SEGMENT #3 3320 35811 XA L, P2 LL, P2 3320 35810 XA 3320 36121 SI 3320 35801 XA WATER LEAK SENSOR RIGHT 3320 36014 LALL 3320 35613 XA COOLANT FROM HEAT EXCHANGER 3320 36015 TA 3320 35612 XA COOLANT TO HEAT EXCHANGER V 3320 36014 LAL 3320 35611 XA H, P2 HH, P2 V 3320 36016 PDAH 3320 35603 XA L, P2 V 3320 36017 ZL 3320 35656 XA L, P2 LL, P2 V 3320 36007 ZL 3320 35601 XA COOLING WATER OUT V 3320 36005 PDAH 3320 35604 TI H, P2 HH, P2 3320 3605 TA P.O NO.: VENDOR DWG NO.: VENDOR: 3320 35605 TI H, P2 HH, P2 3320 36004 LALL 3320 35606 TI BEARING SEGMENT #4 P.O NO.: VENDOR DWG NO.: VENDOR: 3320 36004 LAL P2 BEARING SEGMENT #3 3320 36232 TI 3320 35607 LAH BEARING SEGMENT #4 P.O NO.: VENDOR DWG NO.: VENDOR: 3320 36222 TI 3320 35608 XA BEARING SEGMENT #3 3320-WF-1408-C1A-2"-N 3320 36233 SI 3320 35609 ZA BEARING SEGMENT #2 3320-WF-1401-C1A-4"-N P.O NO.: VENDOR DWG NO.: VENDOR: 3320 36223 SI 3320 35919 PAL BEARING SEGMENT #1 3320-WF-1400-C1A-4"-N 3320 36213 SI L,P2 LL, P2 BEARING SEGMENT #1 3320-WF-1399-C1A-2"-N COMMON ALARM COMMON ALARM P.O NO.: VENDOR DWG NO.: VENDOR: 3320 36203 SI 3320 35918 PAL BEARING SEGMENT #2 3320-WF-1403-C1A-2"-N 3320 36210 XA 3320 36110 XA H, P2 HH, P2 3320 35917 PAL L, P2 H, P2 3320-WF-1402-C1A-2"-N P.O NO.: VENDOR DWG NO.: VENDOR: L, P2 H, P2 L, P2 H, P2 L, P2 H, P2 L, P2 H, P2 HH, P1 C2-3320-ML-601 CLOSED LOOP CWR GRINDING AREA HEAT EXCHANGERS, 3890 3300-25J-057 CLOSED LOOP CWR GRINDING AREA HEAT EXCHANGERS, 3891 3300-25J-057 CLOSED LOOP CWR GRINDING AREA HEAT EXCHANGERS, 3893 3300-25J-057 CLOSED LOOP CWR GRINDING AREA HEAT EXCHANGERS, 3892 3300-25J-057 CLOSED LOOP CWR GRINDING AREA HEAT EXCHANGERS, 3894 3300-25J-057 C2-3320-HX-770/771/772 C2-3320-HX-770/771/772 C2-3320-HX-770/771/772 C2-3320-HX-770/771/772 C2-3320-HX-770/771/772 CLOSED LOOP CWS GRINDING COOLING SYSTEM PUMPS, C2-3320-PP-765/766 3935 3300-25J-056 CLOSED LOOP CWS GRINDING COOLING SYSTEM PUMPS, C2-3320-PP-765/766 3936 3300-25J-056 CLOSED LOOP CWS GRINDING COOLING SYSTEM PUMPS, C2-3320-PP-765/766 3938 3300-25J-056 CLOSED LOOP CWS GRINDING COOLING SYSTEM PUMPS, C2-3320-PP-765/766 3937 3300-25J-056 CLOSED LOOP CWS GRINDING COOLING SYSTEM PUMPS, C2-3320-PP-765/766 3939 3300-25J-056
  • 130.
    T1 T1 T1 LHS P1 A-D A,B T1 3320 05203 B SI 3320 05203 SDI 3320 05203 B SE 3320 05203B ST 3320 05203 A SE 3320 05203 ZSHH A,B LHS 3320 05208 SAL 3320 05201 HSA 3320 05204 ZSHH A,B RHS 3320 05216 LE 3320 05282 XA 3320 05216 LI 3320 05283 II 3320 05208 SE 3320 05204 ZAH 3320 05282 HS 3320 05281 II 3320 05215 LAH P1 3320 05284 II 3320 05216 LIT 3320 05207 SSL 3320 05281 XA 3320 05204 ZSH 3320 05203 A SI 3320 05283 HS 3320 05284 HS 3320 05208 SSL 3320 05203 ZAH LHS RHS 3320 05215 LSH 3320 05282 II 3320 05201 HSS 3320 05281 HS 3320 05284 XA 3320 05202 HSA P1 A-D 3320 05283 XA 3320 05202 HSS 3320 05207 SE P1 3320 05207 SAL 3320 05203 A ST 3320 05203 ZSH GRINDING BALLS BALL MILL BALL TRANSFER CONVEYOR, C2-3320-CV-034 1790 3300-25J-053 A-D A,B RHS J/SP FAULT FAULT NOTES: 1. BALL ADDITION RATE IS INTERMITTENT. 2. BALL BUCKETS ARE BACK-UP FOR AUTOMATED SYSTEM. H, P2 HH, P1 L, P2 P1 A-D LHS DUMP TRUCK J/SP J/SP H J/SP FAULT RHS H, P1 FAULT C2-3320-ST-116 C2-3320-PP-043 V V V V C2-3320-ZM-058 C2-3320-CH-044 ES C2-3320-BN-053/054 C2-3320-CN-044 C2-3320-ST-691/692 C2-3320-CV-033 AG KM LT ISSUED FOR CLIENT REVIEW 23-Dec-11 B RP ISSUED FOR COMBINED REVIEW 29-Jun-11 A 12/23/2011 K. MUNDY A. GUNSON W. BIE L. TAMELIN 12/22/2011 4:34:39 PM WBS: 3320 B PIPING AND INSTRUMENTATION DIAGRAM BALL MILL CIRCUITS 3300-25J-052 BALL STORAGE AND DISTRIBUTION SH. 1 OF 2 C2-3320-BN-050/051 C2-3320-ZM-057 ES SIZE: MATERIAL: MOTOR: C2-3320-PP-043 BALL FEEDER AREA SUBMERSIBLE PUMP ES SIZE: MOTOR: C2-3320-ZM-058 BALL MILL BALL FEEDER SIZE: 600 t EACH OF CAPACITY C2-3320-BN-050/051 BALL MILL BALL STORAGE BINS SIZE: MOTOR: C2-3320-ZM-057 BALL MILL BALL FEEDER SIZE: 4 t CAPACITY C2-3320-BN-053/054 BALL BUCKETS SIZE: C2-3320-ST-116 HIGH LIFT CONVEYOR DISCH. CHUTE SIZE: MOTOR: C2-3320-CH-044 BALL LOADING HOIST SIZE: C2-3320-ST-691/692 BALL FEEDER DISCHARGE CHUTE SIZE: MOTOR: C2-3320-CN-044 BALL LOADING JIB CRANE MONORAIL SIZE: C2-3320-CV-033 HIGH LIFT CONVEYOR D 4 F B A 3 2 1 5 6 8 E 7 C REV. APPROVED CHK. DES. REV. DATE REVISION DESCRIPTION CLIENT LEAD ENGINEER SCALE DRAWING NUMBER CHECK DESIGN CHECK DRAWING DESIGNED BY DRAWN BY APPROVAL DATE APPROVAL DATE APPROVED CHK. DES. REV. DATE REVISION DESCRIPTION REFERENCE DRAWING No. 1:100 0 1:200 5m 10m 0 5m 10m 15m 20m 1:500 10m 0 20m 30m 40m 50m 1:1000 0 100m 50m 1:20 0 0.5m 1m 1.5m 2m 0 1:25 0.5m 1m 1.5m 1:33 1/3 2.5m 2m 0 1m 2m 3m 0 1:50 1m 2m 3m 4m 5m CAD FILE NAME: P:0CAD000SPEM** MODEL UPDATED: DWG. FILE UPDATED: MANUAL CHANGES MADE: YES NO YES NO YES NO PROJECT MANAGER ENGINEERING MANAGER AREA PROJECTENGINEER REFERENCE DRAWINGS SAFETY SHARE: APPROVAL DATE CONTRACT NO. SAFETY SHARE : BA6CVA1.IGR NOTICE: THIS DRAWING HAS NOT BEEN PUBLISHED AND IS THE SOLE PROPERTY OF FLUOR AND IS LENT TO THE BORROWER FOR THEIR CONFIDENTIAL USE ONLY, AND IN CONSIDERATION OF THE LOAN OF THIS DRAWING, THE BORROWER PROMISES AND AGREES TO RETURN IT UPON REQUEST AND AGREES THAT IT WILL NOT BE REPRODUCED, COPIED LENT OR OTHERWISE DISPOSED OF DIRECTLY OR INDIRECTLY, NOR USED FOR ANY OTHER PURPOSE OTHER THAN WHICH IT IS FURNISHED. NONE Apr 2011 240K-C2- T8 BALL LOADING AREA SPILL GRINDING AREA FLOOR SUMP PUMP NO. 1, C2-3310-PP-103 3264 3300-25J-022 NOTE 1 NOTE 2 3320 05204 ZAHH 3320 05203 ZAHH P1 P1 P2 A, B P2 A, B 3320-SL-1015-C1B-2"-N
  • 131.
    LHS T4 A,B A,B 3320 05303 B SE 3320 05303 B ST 3320 05303B SI 3320 05303 SDI H, P1 3320 05301 HSS A-E 3320 05301 HSA 3320 05303 A SE 3320 05303 A SI 3320 05303 ZAH 3320 05302 HSA 3320 05310 WE 3320 05303 A ST 3320 05302 HSS 3320 05303 ZSHH 3320 05303 ZSH LHS 3320 05381 HS J/SP 3320 05381 XA 3320 05304 ZSH 3320 05304 ZAH 3320 05304 ZSHH RHS A,B 3320 05381 II GRINDING BALLS CYCLONE U/F LAUNDER, C2-3330-LA-130 1382 3300-25J-023 GRINDING BALLS CYCLONE U/F LAUNDER, C2-3330-LA-430 1513 3300-25J-037 GRINDING BALLS CYCLONE U/F LAUNDER, C2-3330-LA-230 1473 3300-25J-027 GRINDING BALLS HIGH LIFT CONVEYOR, C2-3320-CV-033 1790 3300-25J-052 GRINDING BALLS CYCLONE U/F LAUNDER, C2-3330-LA-530 1539 3300-25J-043 GRINDING BALLS CYCLONE U/F LAUNDER, C2-3330-LA-330 1501 3300-25J-033 GRINDING BALLS CYCLONE U/F LAUNDER, C2-3330-LA-630 1566 3300-25J-047 LHS P2 A,B FAULT A-E RHS P2 A,B A TO ? A-E LHS P1 FVNR CONV SAFETY INTERLOCKS A,B RHS P1 A-E RHS C2-3320-ZM-115 C2-3320-ST-167 C2-3320-ZM-113 C2-3320-SL-027 3320 05333 A XV + C2-3320-ST-265 3320 05311 XA + C2-3320-ST-365 C2-3320-ZM-112 C2-3320-BN-052 C2-3320-ZM-111 C2-3320-ST-565 C2-3320-ZM-114 C2-3320-ST-665 3320 05333 F XV + C2-3320-ST-165 3320 05333 E XV + AG KM LT ISSUED FOR CLIENT REVIEW 23-Dec-11 B RP ISSUED FOR COMBINED REVIEW 29-Jun-11 A 12/23/2011 K. MUNDY A. GUNSON W. BIE L. TAMELIN 12/21/2011 1:47:01 PM WBS: 3320 B PIPING AND INSTRUMENTATION DIAGRAM BALL MILL CIRCUITS 3300-25J-053 BALL STORAGE AND DISTRIBUTION SH. 2 OF 2 C2-3320-CV-034 C2-3320-ST-465 C2-3320-ZM-116 3320 05333 D XV + C2-3320-SL-028 3320 05333 B XV + 3320 05333 C XV + SIZE: C2-3320-CV-034 BALL MILL BALL TRANSFER CONVEYOR SIZE: C2-3320-SL-027 BELT SCALE 2-IDLER SIZE:1 m3 C2-3320-BN-052 BALL MILL BALL OVERFLOW BIN SIZE: C2-3320-SL-028 HOOK MOUNTED WEIGHT SCALE SIZE: C2-3320-ST-165 TO 665 BALL MILL BALL CHUTES SIZE: C2-3320-ST-167 BALL MILL BALL OVERFLOW CHUTE SIZE: C2-3320-ZM-111 TO 116 PNEUMATIC ACTUATED BELT PLOWS D 4 F B A 3 2 1 5 6 8 E 7 C REV. APPROVED CHK. DES. REV. DATE REVISION DESCRIPTION CLIENT LEAD ENGINEER SCALE DRAWING NUMBER CHECK DESIGN CHECK DRAWING DESIGNED BY DRAWN BY APPROVAL DATE APPROVAL DATE APPROVED CHK. DES. REV. DATE REVISION DESCRIPTION REFERENCE DRAWING No. 1:100 0 1:200 5m 10m 0 5m 10m 15m 20m 1:500 10m 0 20m 30m 40m 50m 1:1000 0 100m 50m 1:20 0 0.5m 1m 1.5m 2m 0 1:25 0.5m 1m 1.5m 1:33 1/3 2.5m 2m 0 1m 2m 3m 0 1:50 1m 2m 3m 4m 5m CAD FILE NAME: P:0CAD000SPEM** MODEL UPDATED: DWG. FILE UPDATED: MANUAL CHANGES MADE: YES NO YES NO YES NO PROJECT MANAGER ENGINEERING MANAGER AREA PROJECTENGINEER REFERENCE DRAWINGS SAFETY SHARE: APPROVAL DATE CONTRACT NO. SAFETY SHARE : BA6CVA1.IGR NOTICE: THIS DRAWING HAS NOT BEEN PUBLISHED AND IS THE SOLE PROPERTY OF FLUOR AND IS LENT TO THE BORROWER FOR THEIR CONFIDENTIAL USE ONLY, AND IN CONSIDERATION OF THE LOAN OF THIS DRAWING, THE BORROWER PROMISES AND AGREES TO RETURN IT UPON REQUEST AND AGREES THAT IT WILL NOT BE REPRODUCED, COPIED LENT OR OTHERWISE DISPOSED OF DIRECTLY OR INDIRECTLY, NOR USED FOR ANY OTHER PURPOSE OTHER THAN WHICH IT IS FURNISHED. NONE Apr 2011 240K-C2- L/R SEL 3320 05333 WI 3320 05333 HS 3320 05333 HS 3320 05333 A WQI 3320 05333 B WQI 3320 05333 C WQI 3320 05333 D WQI 3320 05333 E WQI 3320 05333 F WQI BALL WEIGHT BATCH PANEL MILL 1 MILL 2 MILL 3 MILL 4 MILL 5 MILL 6 3320 05533 A XA 3320 05533 A ZS OP/CL MISMATCH 3320 05333 B XA 3320 05333 B ZS OP/CL MISMATCH 3320 05333 C XA 3320 05333 C ZS OP/CL MISMATCH 3320 05333 D XA 3320 05333 D ZS OP/CL MISMATCH 3320 05333 E XA 3320 05333 E ZS OP/CL MISMATCH 3320 05333 F XA 3320 05333 F ZS OP/CL MISMATCH V V V V V V V V V V V V 3320 05303 ZAHH 3320 05304 ZAHH P1 P1 V 3320 05310 WIT V
  • 132.
    3200 05422 PI 3200 05401 FIT 3200 05407 B TIT H 3200 05408 AIT 3200 05407 B TE 3200 05412A PI 3200 05409 ZS OP/CL 3200 05412 PDI 3200 05402 B PIT 3200 05402 A PI 3200 05423 TI 3200 05402 A PIT 3200 05413 TI 3200 05409 XA MISMATCH 3200 05402 B PI HH 3200 05408 AE 3200 05428 AI 3200 05415 XA MISMATCH 3200 05403 TI 3200 05426 TI 3200 05402 PDI M 3200 05415 ZS OP/CL 3200 05422 B PI HH 3200 05425 XA MISMATCH 3200 05425 ZS OP/CL 3200 05418 AIT 3200 05422 PDI M 3200 05421 FI 3200 05421 FIT 3200 05411 FI 3200 05401 FI 3200 05418 AI 3200 05412 A PIT 3200 05418 AE 3200 05408 AI 3200 05428 AIT 3200 05411 FIT 3200 05406 TI 3200 05407 TIC 3200 05412 B PI HH M 3200 05422 B PIT 3200 05412 B PIT 3200 05416 TI 3200 05405 ZS OP/CL 3200 05422 PIT 3200 05428 AE 3200 05405 XA MISMATCH H H H FRESH WATER BALL MILL NO. 1 SUMP, C2-3310-BX-101 3295 3300-25J-022 CLOSED LOOP CWS GRINDING COOLING SYSTEM TANK, C2-3300-TK-765 3715 3300-25J-055 FRESH WATER BALL MILL NO. 2 SUMP, C2-3310-BX-201 3287 3300-25J-026 FRESH WATER BALL MILL NO. 3 SUMP, C2-3310-BX-301 3278 3300-25J-032 FRESH WATER BALL MILL NO. 5 SUMP, C2-3310-BX-501 3714 3300-25J-042 FRESH WATER BALL MILL NO. 4 SUMP, C2-3310-BX-401 3712 3300-25J-036 FRESH WATER BALL MILL NO. 6 SUMP, C2-3310-BX-601 3713 3300-25J-046 CV TW TW CONV TW CONV CONV TW SEL TW CV TW CV TW 20"x12" 20"x16" DRAIN 3200 05425 XV + DRAIN FI VENT 3320-WF-1477-C1A-16"-N 3200 05404 PSV + 3300-WF- -C1A-1"-N DRAIN AG KM LT ISSUED FOR CLIENT REVIEW 23-Dec-11 B NOT USED A 12/23/2011 K. MUNDY A. GUNSON W. BIE L. TAMELIN 12/23/2011 8:58:46 AM WBS: 3300 B PIPING AND INSTRUMENTATION DIAGRAM GRINDING 3300-25J-054 CLOSED COOLING SYSTEM SH. 1 OF 2 20"x8" 3200 05401 FE + 3200 05407 C TV + 3200 05405 XV + DRAIN SIZE: MOTOR: C2-3320-HX-771 GRINDING AREA HEAT EXCHANGER NO.2 FO FI 3200 05407 A TV + 3200 05415 XV + 3320-WF-1478-C1A-12"-N SIZE: MOTOR: C2-3320-HX-772 GRINDING AREA HEAT EXCHANGER NO.3 DRAIN 3200 05409 XV + DRAIN FC 3320-WF-1480-C1A-12"-N 3320-WF-1479-C1A-16"-N DRAIN 3320-WF-1482-C1A-12"-N PSET= 3200 05411 FE + 3200 05421 FE + DRAIN VENT 3300-WF- -C1A-8"-N PSET= SIZE: MOTOR: C2-3320-HE-770 GRINDING AREA HEAT EXCHANGER NO.1 FO PSET= C2-3320-HX-772 FI DRAIN VENT C2-3320-HE-770 3320-WF-1481-C1A-16"-N C2-3320-HX-771 DRAIN 3320-WF-1480-C1A-20"-N VENT FO 3200 05407 B TV + 3200 05424 PSV + DRAIN 3300-WF- -C1A-1"-N DRAIN 3200 05414 PSV + D 4 F B A 3 2 1 5 6 8 E 7 C REV. APPROVED CHK. DES. REV. DATE REVISION DESCRIPTION CLIENT LEAD ENGINEER SCALE DRAWING NUMBER CHECK DESIGN CHECK DRAWING DESIGNED BY DRAWN BY APPROVAL DATE APPROVAL DATE APPROVED CHK. DES. REV. DATE REVISION DESCRIPTION REFERENCE DRAWING No. 1:100 0 1:200 5m 10m 0 5m 10m 15m 20m 1:500 10m 0 20m 30m 40m 50m 1:1000 0 100m 50m 1:20 0 0.5m 1m 1.5m 2m 0 1:25 0.5m 1m 1.5m 1:33 1/3 2.5m 2m 0 1m 2m 3m 0 1:50 1m 2m 3m 4m 5m CAD FILE NAME: P:0CAD000SPEM** MODEL UPDATED: DWG. FILE UPDATED: MANUAL CHANGES MADE: YES NO YES NO YES NO PROJECT MANAGER ENGINEERING MANAGER AREA PROJECTENGINEER REFERENCE DRAWINGS SAFETY SHARE: APPROVAL DATE CONTRACT NO. SAFETY SHARE : BA6CVA1.IGR NOTICE: THIS DRAWING HAS NOT BEEN PUBLISHED AND IS THE SOLE PROPERTY OF FLUOR AND IS LENT TO THE BORROWER FOR THEIR CONFIDENTIAL USE ONLY, AND IN CONSIDERATION OF THE LOAN OF THIS DRAWING, THE BORROWER PROMISES AND AGREES TO RETURN IT UPON REQUEST AND AGREES THAT IT WILL NOT BE REPRODUCED, COPIED LENT OR OTHERWISE DISPOSED OF DIRECTLY OR INDIRECTLY, NOR USED FOR ANY OTHER PURPOSE OTHER THAN WHICH IT IS FURNISHED. NONE Apr 2011 240K-C2- 3300-WF-1479-C1A-20"-N 3320-WF-1473-C1A-16"-N 3320-WF-1475-C1A-16"-N 3320-WF-1474-C1A-16"-N 3320-WF-1476-C1A-16"-N 20"x16" 3310-WF-1484-C1A-8"-N 3310-WF-1485-C1A-8"-N 3310-WF-1486-C1A-8"-N 3310-WF-1487-C1A-8"-N 3310-WF-1488-C1A-8"-N 3310-WF-1489-C1A-8"-N 20"x16" 1" 1" 1" 3320-WF-1396-C1A-20"-N CLOSED LOOP CWR HEADER 3925 3300-25J-057 VENT 1" 1" 1" 1" FRESH WATER 3025 3300-WF-1132-C1A-20"-N 1/4"
  • 133.
    D 4 F B A 3 2 1 5 68 E 7 C REV. APPROVED CHK. DES. REV. DATE REVISION DESCRIPTION CLIENT LEAD ENGINEER SCALE DRAWING NUMBER CHECK DESIGN CHECK DRAWING DESIGNED BY DRAWN BY APPROVAL DATE APPROVAL DATE APPROVED CHK. DES. REV. DATE REVISION DESCRIPTION REFERENCE DRAWING No. 1:100 0 1:200 5m 10m 0 5m 10m 15m 20m 1:500 10m 0 20m 30m 40m 50m 1:1000 0 100m 50m 1:20 0 0.5m 1m 1.5m 2m 0 1:25 0.5m 1m 1.5m 1:33 1/3 2.5m 2m 0 1m 2m 3m 0 1:50 1m 2m 3m 4m 5m CAD FILE NAME: P:0CAD000SPEM** MODEL UPDATED: DWG. FILE UPDATED: MANUAL CHANGES MADE: YES NO YES NO YES NO PROJECT MANAGER ENGINEERING MANAGER AREA PROJECTENGINEER REFERENCE DRAWINGS SAFETY SHARE: APPROVAL DATE CONTRACT NO. SAFETY SHARE : BA6CVA1.IGR NOTICE: THIS DRAWING HAS NOT BEEN PUBLISHED AND IS THE SOLE PROPERTY OF FLUOR AND IS LENT TO THE BORROWER FOR THEIR CONFIDENTIAL USE ONLY, AND IN CONSIDERATION OF THE LOAN OF THIS DRAWING, THE BORROWER PROMISES AND AGREES TO RETURN IT UPON REQUEST AND AGREES THAT IT WILL NOT BE REPRODUCED, COPIED LENT OR OTHERWISE DISPOSED OF DIRECTLY OR INDIRECTLY, NOR USED FOR ANY OTHER PURPOSE OTHER THAN WHICH IT IS FURNISHED. NONE Apr 2011 240K-C2- AG KM LT ISSUED FOR CLIENT REVIEW 23-Dec-11 B NOT USED A 12/23/2011 K. MUNDY A. GUNSON W. BIE L. TAMELIN 12/23/2011 10:52:09 AM WBS: 3300 B PIPING AND INSTRUMENTATION DIAGRAM GRINDING 3300-25J-055 CLOSED COOLING SYSTEM SH. 2 OF 2 CLOSED LOOP CWS GRINDING AREA HEAT EXCHANGER, 3715 3300-25J-054 DOMESTIC WATER DISTRIBUTION 3723 5400-25J-022 C2-3320-PP-766 C2-3320-PP-765 3300 05581 II 3300 05581 XA 3300 05581 HS FAULT J/SP T1 T1 3300 05582 II 3300 05582 XA 3300 05582 HS FAULT J/SP 3320-WF-1493-C1A-20"-N 3320-WF-1492-C1A-20"-N 3300-WF-1479-C1A-20"-N 3320-WD-1041-G1A-2"-N 3320-WF-1491-C1A-24"-N 3320-WF- -C1A-10"-N 3320-WF- -C1A-10"-N 3300 05501 LE 3300 05501 LV + 3300 05501 LIC 3300 05501 LIT 3320-WF-1494-C1A-24"-N 3300 PCV + 3320-WF-1492-C1A-20"-N C2-3320-TK-765 WATER TREATMENT DOSING SYSTEM VENDOR SUPPLY FLUOR VENDOR SIZE: MATERIAL: MOTOR: C2-3320-PP-765 GRINDING COOLING SYSTEM PUMP NO. 1 SIZE: MATERIAL: MOTOR: C2-3320-PP-766 GRINDING COOLING SYSTEM PUMP NO. 2 (STANDBY) SIZE: MATERIAL: CAPACITY: TRIM:3300-WF-1496-C1A C2-3320-TK-765 GRINDING COOLING SYSTEM TANK C2-3300-HX-770/771/772 16"x12" 16"x12" 3300-WF- -C1A-16"-N 3300-RE- -S1A-1"-N CLOSED LOOP CWS HEADER 3863 3300-25J-056
  • 134.
    CLOSED LOOP CWS GRINDINGCOOLING SYSTEM PUMP NO.1 & NO. 2, 3863 3300-25J-055 CLOSED LOOP CWS PLANT AIR COMPRESSOR, C2-3960-CO-701/702/703/707/7 3864 3900-25J-017 AG KM LT ISSUED FOR CLIENT REVIEW 23-Dec-11 B NOT USED A 12/23/2011 K. MUNDY A. GUNSON W. BIE L. TAMELIN 12/22/2011 4:37:13 PM WBS: 3300 B PIPING AND INSTRUMENTATION DIAGRAM GRINDING 3300-25J-056 GRINDING COOLING WATER SUPPLY DIST. D 4 F B A 3 2 1 5 6 8 E 7 C REV. APPROVED CHK. DES. REV. DATE REVISION DESCRIPTION CLIENT LEAD ENGINEER SCALE DRAWING NUMBER CHECK DESIGN CHECK DRAWING DESIGNED BY DRAWN BY APPROVAL DATE APPROVAL DATE APPROVED CHK. DES. REV. DATE REVISION DESCRIPTION REFERENCE DRAWING No. 1:100 0 1:200 5m 10m 0 5m 10m 15m 20m 1:500 10m 0 20m 30m 40m 50m 1:1000 0 100m 50m 1:20 0 0.5m 1m 1.5m 2m 0 1:25 0.5m 1m 1.5m 1:33 1/3 2.5m 2m 0 1m 2m 3m 0 1:50 1m 2m 3m 4m 5m CAD FILE NAME: P:0CAD000SPEM** MODEL UPDATED: DWG. FILE UPDATED: MANUAL CHANGES MADE: YES NO YES NO YES NO PROJECT MANAGER ENGINEERING MANAGER AREA PROJECTENGINEER REFERENCE DRAWINGS SAFETY SHARE: APPROVAL DATE CONTRACT NO. SAFETY SHARE : BA6CVA1.IGR NOTICE: THIS DRAWING HAS NOT BEEN PUBLISHED AND IS THE SOLE PROPERTY OF FLUOR AND IS LENT TO THE BORROWER FOR THEIR CONFIDENTIAL USE ONLY, AND IN CONSIDERATION OF THE LOAN OF THIS DRAWING, THE BORROWER PROMISES AND AGREES TO RETURN IT UPON REQUEST AND AGREES THAT IT WILL NOT BE REPRODUCED, COPIED LENT OR OTHERWISE DISPOSED OF DIRECTLY OR INDIRECTLY, NOR USED FOR ANY OTHER PURPOSE OTHER THAN WHICH IT IS FURNISHED. NONE Apr 2011 240K-C2- CLOSED LOOP CWS MILL NO.5 FIXED BEARING LUBE UNIT, C2-3320-ML-501 3930 3300-25J-044 CLOSED LOOP CWS MILL NO.5 FLOATING BEARING LUBE UNIT, C2-3320-ML-501 3931 3300-25J-044 CLOSED LOOP CWS MILL NO.5 MILL MOTOR CONTROL (NORTH), 3932 3300-25J-044 CLOSED LOOP CWS MILL NO.5 MILL MOTOR CONTROL (SOUTH), 3933 3300-25J-044 CLOSED LOOP CWS MILL NO.5 CYCLOCONVERTER CONTROL, C2-3320-ML-501 3934 3300-25J-044 CLOSED LOOP CWS MILL NO.6 FIXED BEARING LUBE UNIT, C2-3320-ML-601 3935 3300-25J-051 CLOSED LOOP CWS MILL NO.6 FLOATING BEARING LUBE UNIT, C2-3320-ML-601 3936 3300-25J-051 CLOSED LOOP CWS MILL NO.6 MILL MOTOR CONTROL (NORTH), 3937 3300-25J-051 CLOSED LOOP CWS MILL NO.6 MILL MOTOR CONTROL (SOUTH), 3938 3300-25J-051 CLOSED LOOP CWS MILL NO.6 CYCLOCONVERTER CONTROL, C2-3320-ML-601 3939 3300-25J-051 CLOSED LOOP CWS MILL NO.3 CYCLOCONVERTER COTROL, C2-3320-ML-301 3944 3300-25J-034 CLOSED LOOP CWS MILL NO.4 FIXED BEARING LUBE UNIT, C2-3320-ML-401 3945 3300-25J-041 CLOSED LOOP CWS MILL NO.4 FLOATING BEARING LUBE UNIT, C2-3320-ML-401 3946 3300-25J-041 CLOSED LOOP CWS MILL NO.4 MILL MOTOR CONTROL (SOUTH), 3948 3300-25J-041 CLOSED LOOP CWS MILL NO.3 FLOATING BEARING LUBE UNIT, C2-3320-ML-301 3941 3300-25J-034 CLOSED LOOP CWS MILL NO.3 FIXED BEARING LUBE UNIT, C2-3320-ML-301 3940 3300-25J-034 CLOSED LOOP CWS MILL NO.3 MILL MOTOR CONTROL (SOUTH), 3943 3300-25J-034 CLOSED LOOP CWS MILL NO.4 MILL MOTOR CONTROL (NORTH), 3947 3300-25J-041 CLOSED LOOP CWS MILL NO.3 MILL MOTOR CONTROL (NORTH), 3942 3300-25J-034 CLOSED LOOP CWS MILL NO.4 CYCLOCONVERTER CONTROL, C2-3320-ML-401 3949 3300-25J-041 CLOSED LOOP CWS MILL NO.1 FIXED BEARING LUBE UNIT, C2-3320-ML-101 3950 3300-25J-024 CLOSED LOOP CWS MILL NO.2 CYCLOCONVERTER CONTROL, C2-3320-ML-201 3959 3300-25J-031 CLOSED LOOP CWS MILL NO.1 MILL MOTOR CONTROL (NORTH), 3952 3300-25J-024 CLOSED LOOP CWS MILL NO.1 FLOATING BEARING LUBE UNIT, C2-3320-ML-101 3951 3300-25J-024 CLOSED LOOP CWS MILL NO.1 MILL MOTOR CONTROL (SOUTH), 3953 3300-25J-024 CLOSED LOOP CWS MILL NO.2 MILL MOTOR CONTROL (SOUTH), 3958 3300-25J-031 CLOSED LOOP CWS MILL NO.1 CYCLOCONVERTER CONTROL, C2-3320-ML-101 3954 3300-25J-024 CLOSED LOOP CWS MILL NO.2 FIXED BEARING LUBE UNIT, C2-3320-ML-201 3955 3300-25J-031 CLOSED LOOP CWS MILL NO.2 FLOATING BEARING LUBE UNIT, C2-3320-ML-201 3956 3300-25J-031 CLOSED LOOP CWS MILL NO.2 MILL MOTOR CONTROL (NORTH), 3957 3300-25J-031 3300-WF-1390-C1A-2"-N 3320-WF-1391-C1A-2"-N 3320-WF-1388-C1A-4"-N 3300-WF-1389-C1A-4"-N 3320-WF-1387-C1A-2"-N 3320-WF-1402-C1A-2"-N 3300-WF-1403-C1A-2"-N 3320-WF-1400-C1A-4"-N 3300-WF-1401-C1A-4"-N 3300-WF-1399-C1A-2"-N 3320-WF-1367-C1A-2"-N 3320-WF-1368-C1A-2"-N 3320-WF-1365-C1A-4"-N 3320-WF-1366-C1A-4"-N 3320-WF-1364-C1A-2"-N 3320-WF-1379-C1A-2"-N 3320-WF-1380-C1A-2"-N 3300-WF-1377-C1A-4"-N 3320-WF-1378-C1A-4"-N 3320-WF-1376-C1A-2"-N 3320-WF-1343-C1A-2"-N 3320-WF-1344-C1A-2"-N 3320-WF-1341-C1A-4"-N 3320-WF-1342-C1A-4"-N 3320-WF-1340-C1A-2"-N 3320-WF-1356-C1A-2"-N 3320-WF-1357-C1A-2"-N 3320-WF-1354-C1A-4"-N 3320-WF-1355-C1A-4"-N 3300-WF-1353-C1A-2"-N 10"x3" 3"x2" 4"x2" 8"x4" 4"x2" 8"x4" 8"x4" 4"x2" 8"x4" 4"x2" 3"x2" 10"x3" 8"x4" 4"x2" 8"x4" 4"x2" 3"x2" 10"x3" 20"x10" 3300-WF-1353-C1A-20"-N 3300-WF- -C1A-8"-N 3320-WF-1399-C1A-10"-N 3320-WF-1376-C1A-10"-N 3300-WF-1353-C1A-10"-N C2-3320-ML-401 C2-3320-ML-401 C2-3320-ML-301 C2-3320-ML-301 C2-3320-ML-101 C2-3320-ML-101 C2-3320-ML-201 C2-3320-ML-201 C2-3320-ML-601 C2-3320-ML-601 C2-3320-ML-501 C2-3320-ML-501 08 C2-3300-PP-765/766
  • 135.
    D 4 F B A 3 2 1 5 68 E 7 C REV. APPROVED CHK. DES. REV. DATE REVISION DESCRIPTION CLIENT LEAD ENGINEER SCALE DRAWING NUMBER CHECK DESIGN CHECK DRAWING DESIGNED BY DRAWN BY APPROVAL DATE APPROVAL DATE APPROVED CHK. DES. REV. DATE REVISION DESCRIPTION REFERENCE DRAWING No. 1:100 0 1:200 5m 10m 0 5m 10m 15m 20m 1:500 10m 0 20m 30m 40m 50m 1:1000 0 100m 50m 1:20 0 0.5m 1m 1.5m 2m 0 1:25 0.5m 1m 1.5m 1:33 1/3 2.5m 2m 0 1m 2m 3m 0 1:50 1m 2m 3m 4m 5m CAD FILE NAME: P:0CAD000SPEM** MODEL UPDATED: DWG. FILE UPDATED: MANUAL CHANGES MADE: YES NO YES NO YES NO PROJECT MANAGER ENGINEERING MANAGER AREA PROJECTENGINEER REFERENCE DRAWINGS SAFETY SHARE: APPROVAL DATE CONTRACT NO. SAFETY SHARE : BA6CVA1.IGR NOTICE: THIS DRAWING HAS NOT BEEN PUBLISHED AND IS THE SOLE PROPERTY OF FLUOR AND IS LENT TO THE BORROWER FOR THEIR CONFIDENTIAL USE ONLY, AND IN CONSIDERATION OF THE LOAN OF THIS DRAWING, THE BORROWER PROMISES AND AGREES TO RETURN IT UPON REQUEST AND AGREES THAT IT WILL NOT BE REPRODUCED, COPIED LENT OR OTHERWISE DISPOSED OF DIRECTLY OR INDIRECTLY, NOR USED FOR ANY OTHER PURPOSE OTHER THAN WHICH IT IS FURNISHED. NONE Apr 2011 240K-C2- CLOSED LOOP CWR MILL NO.1 FIXED BEARING LUBE UNIT, C2-3320-ML-101 3865 3300-25J-024 CLOSED LOOP CWR MILL NO.1 FLOATING BEARING LUBE UNIT, C2-3320-ML-101 3866 3300-25J-024 CLOSED LOOP CWR MILL NO.1 MILL MOTOR CONTROL (NORTH), 3867 3300-25J-024 CLOSED LOOP CWR MILL NO.1 MILL MOTOR CONTROL (SOUTH), 3868 3300-25J-024 CLOSED LOOP CWR UNIT NO.1 CYCLOCONVERTER 3869 3300-25J-024 CLOSED LOOP CWR MILL NO.1 FIXED BEARING LUBE UNIT, C2-3320-ML-101 3870 3300-25J-031 CLOSED LOOP CWR MILL NO.2 FLOATING BEARING LUBE UNIT, C2-3320-ML-201 3871 3300-25J-031 CLOSED LOOP CWR MILL NO.2 MILL MOTOR CONTROL (NORTH), 3872 3300-25J-031 CLOSED LOOP CWR MILL NO.2 MILL MOTOR CONTROL (SOUTH), 3873 3300-25J-031 CLOSED LOOP CWR UNIT NO.2 CYCLOCONVERTER 3874 3300-25J-031 CLOSED LOOP CWR MILL NO.3 FIXED BEARING LUBE UNIT, C2-3320-ML-301 3875 3300-25J-034 CLOSED LOOP CWR MILL NO.3 FLOATING BEARING LUBE UNIT, C2-3320-ML-301 3876 3300-25J-034 CLOSED LOOP CWR MILL NO.3 MILL MOTOR CONTROL (NORTH), 3877 3300-25J-034 CLOSED LOOP CWR MILL NO.3 MILL MOTOR CONTROL (SOUTH), 3878 3300-25J-034 CLOSED LOOP CWR UNIT NO.3 CYCLOCONVERTER 3879 3300-25J-034 CLOSED LOOP CWR MILL NO.4 FIXED BEARING LUBE UNIT, C2-3320-ML-401 3880 3300-25J-041 CLOSED LOOP CWR MILL NO.4 FLOATING BEARING LUBE UNIT, C2-3320-ML-401 3881 3300-25J-041 CLOSED LOOP CWR MILL NO.4 MILL MOTOR CONTROL (NORTH), 3882 3300-25J-041 CLOSED LOOP CWR MILL NO.4 MILL MOTOR CONTROL (SOUTH), 3883 3300-25J-041 CLOSED LOOP CWR UNIT NO.1 CYCLOCONVERTER 3884 3300-25J-041 CLOSED LOOP CWR MILL NO.5 FIXED BEARING LUBE UNIT, C2-3320-ML-501 3885 3300-25J-044 CLOSED LOOP CWR MILL NO.5 FLOATING BEARING LUBE UNIT, C2-3320-ML-501 3886 3300-25J-044 CLOSED LOOP CWR MILL NO.5 MILL MOTOR CONTROL (NORTH), 3887 3300-25J-044 CLOSED LOOP CWR MILL NO.5 MILL MOTOR CONTROL (SOUTH), 3888 3300-25J-044 CLOSED LOOP CWR UNIT NO.5 CYCLOCONVERTER 3889 3300-25J-044 CLOSED LOOP CWR MILL NO.6 FIXED BEARING LUBE UNIT, C2-3320-ML-601 3890 3300-25J-051 CLOSED LOOP CWR MILL NO.6 FLOATING BEARING LUBE UNIT, C2-3320-ML-601 3891 3300-25J-051 CLOSED LOOP CWR MILL NO.6 MILL MOTOR CONTROL (NORTH), 3892 3300-25J-051 CLOSED LOOP CWR MILL NO.6 MILL MOTOR CONTROL (SOUTH), 3893 3300-25J-051 CLOSED LOOP CWR UNIT NO.6 CYCLOCONVERTER 3894 3300-25J-051 3300-WF-1348-C1A-2"-N 3300-WF-1349-C1A-2"-N 3300-WF-1346-C1A-4"-N 3300-WF-1347-C1A-4"-N 3300-WF-1345-C1A-2"-N 3300-WF-1361-C1A-2"-N 3300-WF-1362-C1A-2"-N 3300-WF-1359-C1A-4"-N 3300-WF-1360-C1A-4"-N 3300-WF-1358-C1A-2"-N 4"x2" 8"x4" 4"x2" 8"x4" 3"x2" 10"x4" 3300-WF-1372-C1A-2"-N 3300-WF-1373-C1A-2"-N 3300-WF-1370-C1A-4"-N 3300-WF-1371-C1A-4"-N 3300-WF-1369-C1A-2"-N 3300-WF-1384-C1A-2"-N 3300-WF-1385-C1A-2"-N 3300-WF-1382-C1A-4"-N 3300-WF-1383-C1A-4"-N 3300-WF-1381-C1A-2"-N 4"x2" 8"x4" 4"x2" 8"x4" 3"x2" 10"x4" 3300-WF-1395-C1A-2"-N 3300-WF-1396-C1A-2"-N 3300-WF-1393-C1A-4"-N 3300-WF-1394-C1A-4"-N 3300-WF-1392-C1A-2"-N 3300-WF-1407-C1A-2"-N 3300-WF-1408-C1A-2"-N 3300-WF-1405-C1A-4"-N 3300-WF-1406-C1A-4"-N 3300-WF-1404-C1A-2"-N 4"x2" 8"x4" 4"x2" 8"x4" 3"x2" 10"x4" C2-3320-ML-101 C2-3320-ML-101 (CONTROL), C2-3320-ML-101 C2-3320-ML-201 C2-3320-ML-201 (CONTROL), C2-3320-ML-201 C2-3320-ML-301 C2-3320-ML-301 (CONTROL), C2-3320-ML-301 C2-3320-ML-401 C2-3320-ML-401 (CONTROL), C2-3320-ML-401 C2-3320-ML-501 C2-3320-ML-501 (CONTROL), C2-3320-ML-501 C2-3320-ML-601 C2-3320-ML-601 (CONTROL), C2-3320-ML-601 20"x10" 3300-WF-1349-C1A-10"-N 3300-WF-1373-C1A-10"-N 3300-WF-1396-C1A-10"-N CLOSED LOOP CWR GRINDING AREA HEAT EXCHANGER NO.1 TO NO.3, 3925 3300-25J-054 3300-WF-1386-C1A-20"-N CLOSED LOOP CWR PLANT AIR COMPRESSOR, C2-3960-CO-701/702/703/707/ 3926 3900-25J-017 708 3300-WF- -C1A-8"-N C2-3300-HX-770/771/772 AG KM LT ISSUED FOR CLIENT REVIEW 23-Dec-11 B NOT USED A 12/23/2011 K. MUNDY A. GUNSON W. BIE L. TAMELIN 12/23/2011 10:53:53 AM WBS: 3300 B PIPING AND INSTRUMENTATION DIAGRAM GRINDING 3300-25J-057 GRINDING COOLING WATER RETURN COLLEC.
  • 136.
    T1 T1 T1 T1 T1 T1 3410 00111 LIT 3410 00121 LIC 3410 00123 AT 3410 00103 AT 3410 00182 II 3410 00121 LIT 3410 00103 AI 3410 00102 LI 3410 00122 LIT 3410 00121 LE 3410 00101 LIC 3410 00111 LE 3410 00102 LE 3410 00101 LIT 3410 00183 II 3410 00182 XAFAULT 3410 00102 LIT 3410 00122 LI 3410 00112 LIT 3410 00183 XA FAULT 3410 00122 LE 3410 00181 XA FAULT 3410 00113 AI 3410 00112 LI 3410 00183 HS 3410 00181 II 3410 00113 AT 3410 00112 LE 3410 00181 HS 3410 00182 HS 3410 00101 LE 3410 00123 AI 3410 00111 LIC 3410 00193 HS 3410 00152 LE 3410 00152 LI 3410 00152 LIT 3410 00193 XA FAULT 3410 00192 II 3410 00141 LIC 3410 00151 LIT 3410 00151 LIC 3410 00153 AI 3410 00192 II 3410 00141 LIT 3410 00143 AT 3410 00153 AT 3410 00132 LE 3410 00131 LE 3410 00191 HS 3410 00191 II 3410 00191 XA FAULT 3410 00132 LIT 3410 00132 LI 3410 00143 AI 3410 00133 AT 3410 00133 AI 3410 00192 XA FAULT 3410 00141 LE 3410 00142 LI 3410 00131 LIT 3410 00142 LIT 3410 00131 LIC 3410 00192 HS 3410 00151 LE 3410 00142 LE MILK OF LIME LIME DISTRIBUTION PUMPS, C2-3920-PP-093/094 1059 3900-25J-012 PROCESS WATER SCAVENGER FLOTATION ROW NO. 1 1007 3400-25J-002 PROCESS WATER SCAVENGER FLOTATION ROW NO. 2 1016 3400-25J-002 PH CONTROL 1381 3400-25J-042 PH CONTROL 1377 3400-25J-045 TEST REAGENT INJECTOR, C2-3910-ZM-697 1003 3900-25J-004 PH CONTROL 1378 3400-25J-042 PRIMARY CYCLONE O/F PARTICLE SIZE ANALYZER, C2-330-AZ-101 1351 3300-25J-025 PRIMARY CYCLONE O/F BALL MILL NO. 1 O/F SAMPLER, C2-3330-SA-501 1349 3300-25J-025 MILK OF LIME LIME DISTRIBUTION PUMPS, C2-3920-PP-093/094 1056 3900-25J-012 TEST REAGENT INJECTOR, C2-3910-ZM-698 1018 3900-25J-004 MILK OF LIME LIME DISTRIBUTION PUMPS, C2-3920-PP-093/094 1057 3900-25J-012 FROTHER ALCOHOL INJECTOR, C2-3910-ZM-682 1019 3900-25J-006 MILK OF LIME LIME DISTRIBUTION PUMPS, C2-3920-PP-093/094 1058 3900-25J-012 PH CONTROL 1380 3400-25J-045 ROUGHER CONCENTRATE ROUGHER CONCENTRATE LAUNDER,C2-3410-LA-203 1013 3400-25J-002 ROUGHER CONCENTRATE ROUGHER CONCENTRATE LAUNDER, C2-3410-LA-103 1009 3400-25J-002 SCAV. CONCENTRATE SCAVENGER CONCENTRATE LAUNDER, C2-3410-LA-104 1008 3400-25J-002 SCAVENGER TAIL. SCAVENGER CELL NO. 2, ROW NO. 2, C2-3410-CF-204 1017 3400-25J-002 SCAVENGER TAIL. SCAVENGER CELL NO. 2, ROW NO. 1, C2-3410-CF-104 1005 3400-25J-002 PRIMARY CYCLONE O/F PARTICLE SIZE ANALYZER, C2-3330-AZ-101 1352 3300-25J-025 FROTHER ALCOHOL INJECTOR, C2-3910-ZM-681 1002 3900-25J-006 SCAVENGER TAIL. SCAVENGER CELL NO. 2, ROW NO. 1, C2-3410-CF-104 1006 3400-25J-002 SCAV. CONCENTRATE SCAVENGER CONCENTRATE LAUNDER, C2-3410-LA-204 1015 3400-25J-002 PRIMARY CYCLONE O/F BALL MILL NO.2 O/F SAMPLER, C2-3330-SA-201 1348 3300-25J-025 SCAVENGER TAIL. SCAVENGER CELL NO. 2, ROW NO. 2, C2-3410-CF-204 1014 3400-25J-002 VENDOR AIR INTAKE J/SP AIR INTAKE VENDOR VENDOR VENDOR VENDOR AIR INTAKE J/SP (LAUNDER) VENDOR J/SP J/SP J/SP VENDOR VENDOR VENDOR VENDOR VENDOR VENDOR AIR INTAKE AIR INTAKE J/SP AIR INTAKE VENDOR VENDOR VENDOR VENDOR (LAUNDER) MIN MIN MIN MIN MIN MIN MIN MIN AG KM LT ISSUED FOR CLIENT REVIEW 22-Dec-11 B RP ISSUED FOR COMBINED REVIEW 29-Jun-11 A 12/22/2011 K. MUNDY A. GUNSON W. BIE L. TAMELIN 12/22/2011 2:22:15 PM WBS: 3400 B PIPING AND INSTRUMENTATION DIAGRAM FLOTATION 3400-25J-001 ROUGHER & SCAV ROWS 1 & 2 3410-WR-1499-C1A-1-1/2"-N 3330-SL-1031-C1A-48"-N FC FC 12" 3410-RL-1528-C1B-3"-N C2-3410-LA-103 12" C2-3410-LA-104 3430 04201 A AV + 3410 04508 A AV + 3410 00105 XV + 3410 00104 XV + C2-3410-CF-102 C2-3410-ST-168 SIZE: 255 m3 MATERIAL: MOTOR: 300.00 kW C2-3410-CF-103 SCAVENGER FLOTATION CELL NO. 1 ROW NO. 1 1-1/2"x1/2" 3410 00111 A LV + 3410-WR-1518-C1A-1-1/2"-N C2-3410-CF-103 3410-WR-1517-C1A-2"-N C2-3410-CF-101 3"x1-1/2" 3"x1-1/2" 3410-WR-1503-C1A-1-1/2"-N SIZE: C2-3410-LA-103 ROUGHER CONCENTRATE LAUNDER ROW NO. 1 3410-WR-1502-C1A-2"-N 3410 00111 B LV + 12" 1-1/2"x1/2" SIZE: 255 m3 MOTOR: 300.00 kW C2-3410-CF-102 ROUGHER FLOTATION CELL NO. 2 ROW NO. 1 1-1/2"x1/2" 28"x18" 3"x1-1/2" SIZE: 255 m3 MATERIAL: MOTOR: 300.00 kW C2-3410-CF-101 ROUGHER FLOTATION CELL NO. 1 ROW NO. 1 3"x1-1/2" 3930-WR-1207-C1A-3"-N 3410-SL-1093-RIB-28"-N 3410-SL-1095-R1A-18"-N 3410-WR-1498-C1A-2"-N 3410 00121 A LV + 3410 00121 B LV + 3410-WR-1525-C1A-1-1/2"-N SIZE: C2-3410-LA-104 SCAVENGER CONCENTRATE LAUNDER ROW NO. 1 3410 00101 B LV + 3410 00101 A LV + 3410 04508 B AV + 3430 04201 B AV + 3410 00151 B LV + 3410 00151 A LV + 3410-WR-1547-C1A-1-1/2"-N C2-3410-LA-204 3410-WR-1531-C1A-1-1/2"-N C2-3410-LA-203 3410-WR-1530-C1A-2"-N 3410-SL-1096-R1A-18"-N 3"x1-1/2" 3"x1-1/2" FC FC 3410-RL-1019-C1B-1-1/2"-N 3410-RL-1021-C1B-1-1/2"-N 3410-SL-1108-R1B-28"-N V V V 28"x18" C2-3410-CF-202 1-1/2"x1/2" 3410-SL-1094-R1B-28"-N 1-1/2"x1/2" 3930-WR-1206-C1A-3"-N C2-3410-CF-201 3410 00131 A LV + 3410-WR-1543-C1A-1-1/2"-N 3410-WR-1542-C1A-2"-N C2-3410-ST-268 3410-WR-1527-C1A-1-1/2"-N V V V V V V V V V V V 3410-SL-1798-R1B-28"-N V V V V V 3410-RL-1020-C1B-1-1/2"-N 3410-RL-1018-C1B-1-1/2"-N 3930-WR-1206-C1A-3"-N 3410-RC-1125-C1D-1"-N 3410-RF-1032-C1D-1"-N 3410 00125 XV + 12" 12" 1-1/2"x1/2" 3410 00131 B LV + 3410 00141 B LV + 3410 00141 A LV + 3410-WR-1526-C1A-2"-N 3"x1-1/2" 3"x1-1/2" C2-3410-CF-203 12" 3410 00124 XV + SIZE: 255 m3 MOTOR: 300.00 kW C2-3410-CF-201 ROUGHER FLOTATION CELL NO. 1 ROW NO. 2 SIZE: 255 m3 MOTOR: 300.00 kW C2-3410-CF-202 ROUGHER FLOTATION CELL NO. 2 ROW NO. 2 SIZE: 255 m3 MOTOR: 300.00 kW C2-3410-CF-203 SCAVENGER FLOTATION CELL NO. 1 ROW NO. 2 SIZE: C2-3410-ST-268 ROUGHER CONCENTRATE DISTRIBUTION BOX NO. 2 SIZE: C2-3410-LA-204 SCAVENGER CONCENTRATE LAUNDER ROW NO. 2 SIZE: C2-3410-LA-203 ROUGHER CONCENTRATE LAUNDER ROW NO. 2 D 4 F B A 3 2 1 5 6 8 E 7 C REV. APPROVED CHK. DES. REV. DATE REVISION DESCRIPTION CLIENT LEAD ENGINEER SCALE DRAWING NUMBER CHECK DESIGN CHECK DRAWING DESIGNED BY DRAWN BY APPROVAL DATE APPROVAL DATE APPROVED CHK. DES. REV. DATE REVISION DESCRIPTION REFERENCE DRAWING No. 1:100 0 1:200 5m 10m 0 5m 10m 15m 20m 1:500 10m 0 20m 30m 40m 50m 1:1000 0 100m 50m 1:20 0 0.5m 1m 1.5m 2m 0 1:25 0.5m 1m 1.5m 1:33 1/3 2.5m 2m 0 1m 2m 3m 0 1:50 1m 2m 3m 4m 5m CAD FILE NAME: P:0CAD000SPEM** MODEL UPDATED: DWG. FILE UPDATED: MANUAL CHANGES MADE: YES NO YES NO YES NO PROJECT MANAGER ENGINEERING MANAGER AREA PROJECT ENGINEER REFERENCE DRAWINGS SAFETY SHARE: APPROVAL DATE CONTRACT NO. SAFETY SHARE : BA6CVA1.IGR NOTICE: THIS DRAWING HAS NOT BEEN PUBLISHED AND IS THE SOLE PROPERTY OF FLUOR AND IS LENT TO THE BORROWER FOR THEIR CONFIDENTIAL USE ONLY, AND IN CONSIDERATION OF THE LOAN OF THIS DRAWING, THE BORROWER PROMISES AND AGREES TO RETURN IT UPON REQUEST AND AGREES THAT IT WILL NOT BE REPRODUCED, COPIED LENT OR OTHERWISE DISPOSED OF DIRECTLY OR INDIRECTLY, NOR USED FOR ANY OTHER PURPOSE OTHER THAN WHICH IT IS FURNISHED. NONE Apr 2011 240K-C2- 3400 00124 ZS 3400 00125 XA 3400 00124 XA 3400 00125 ZS 3400 00105 ZS 3400 00104 ZS 3400 00105 XA 3400 00104 XA V V V V 3930-WR-1207-C1A-3"-N 3410-RC-1124-C1D-1"-N 3410-RF-1031-C1D-1"-N 3330-SL-1032-RIB-48"-N 3330-SL-1029-RIB-4"-N V V V V V V V V V V 3410-SL-1797-RIB-28"-N FI FI FI FI 3410-WR-1528-C1A-1-1/2"-N V 3410-WR-1500-C1A-1-1/2"-N 3410-SL-1107-R1B-28"-N V V V V V V PROCESS WATER 2896 3900-25J-015 PROCESS WATER 2897 3900-25J-015 3330-SL-1030-C1B-4"-N SIZE: C2-3410-ST-168 ROUGHER CONCENTRATE DISTRIBUTION BOX NO.1 IMAGE IMAGE IMAGE IMAGE IMAGE IMAGE SCAV. CONCENTRATE SCAV. CONC. DISTRIBUTION BOX NO.1, C2-3410-ST-169 4092 3400-25J-002 SCAV. CONCENTRATE SCAV. CONC. DISTRIBUTION BOX NO.2, C2-3410-ST-269 4093 3400-25J-002
  • 137.
    3410 00211 LIT 3410 00213 AI 3410 00223 AT 3410 00222 LI 3410 00213 AT 3410 00223 AI 3410 00232 LIT 3410 00231 LIC 3410 00203 AI 3410 00203 AT 3410 00282 II 3410 00202 LI 3410 00282 XA FAULT 3410 00202 LIT 3410 00292 II 3410 00212 LIT 3410 00212 LI 3410 00281 XAFAULT 3410 00221 LIT 3410 00281 II 3410 00221 LIC 3410 00233 AT 3410 00281 HS 3410 00282 HS 3410 00231 LE 3410 00202 LE 3410 00232 LI 3410 00291 XA FAULT 3410 00233 AI 3410 00201 LE 3410 00201 LIC 3410 00222 LE 3410 00201 LIT 3410 00292 XA FAULT 3410 00221 LE 3410 00232 LE 3410 00212 LE 3410 00231 LIT 3410 00291 HS 3410 00222 LIT 3410 00211 LE 3410 00292 HS 3410 00291 II 3410 00211 LIC VENDOR VENDOR VENDOR VENDOR VENDOR AIR INTAKE AIR INTAKE J/SP J/SP AIR INTAKE J/SP AIR INTAKE J/SP VENDOR VENDOR VENDOR VENDOR VENDOR VENDOR VENDOR VENDOR VENDOR VENDOR VENDOR VENDOR VENDOR VENDOR VENDOR (LAUNDER) (LAUNDER) C2-3410-CF-204 C2-3410-CF-205 C2-3410-ST-169 C2-3410-ST-269 3410 00231 B LV + 3410 00211 A LV + 3410 00211 B LV + 3410 00205 XV + 3410 00204 XV + 3410 00221 A LV + 3410 00201 B LV + 3410 00201 A LV + 3410 00225 XV + 3410 00221 B LV + 3410 00231 A LV + C2-3410-CF-105 C2-3410-CF-104 1-1/2"x1/2" 1-1/2"x1/2" 1-1/2"x1/2" 1-1/2"x1/2" 12" 12" 12" 12" D 4 F B A 3 2 1 5 6 8 E 7 C REV. APPROVED CHK. DES. REV. DATE REVISION DESCRIPTION CLIENT LEAD ENGINEER SCALE DRAWING NUMBER CHECK DESIGN CHECK DRAWING DESIGNED BY DRAWN BY APPROVAL DATE APPROVAL DATE APPROVED CHK. DES. REV. DATE REVISION DESCRIPTION REFERENCE DRAWING No. 1:100 0 1:200 5m 10m 0 5m 10m 15m 20m 1:500 10m 0 20m 30m 40m 50m 1:1000 0 100m 50m 1:20 0 0.5m 1m 1.5m 2m 0 1:25 0.5m 1m 1.5m 1:33 1/3 2.5m 2m 0 1m 2m 3m 0 1:50 1m 2m 3m 4m 5m CAD FILE NAME: P:0CAD000SPEM** MODEL UPDATED: DWG. FILE UPDATED: MANUAL CHANGES MADE: YES NO YES NO YES NO PROJECT MANAGER ENGINEERING MANAGER AREA PROJECT ENGINEER REFERENCE DRAWINGS SAFETY SHARE: APPROVAL DATE CONTRACT NO. SAFETY SHARE : BA6CVA1.IGR NOTICE: THIS DRAWING HAS NOT BEEN PUBLISHED AND IS THE SOLE PROPERTY OF FLUOR AND IS LENT TO THE BORROWER FOR THEIR CONFIDENTIAL USE ONLY, AND IN CONSIDERATION OF THE LOAN OF THIS DRAWING, THE BORROWER PROMISES AND AGREES TO RETURN IT UPON REQUEST AND AGREES THAT IT WILL NOT BE REPRODUCED, COPIED LENT OR OTHERWISE DISPOSED OF DIRECTLY OR INDIRECTLY, NOR USED FOR ANY OTHER PURPOSE OTHER THAN WHICH IT IS FURNISHED. NONE Apr 2011 240K-C2- 3410 00221 XV + (LAUNDER) (LAUNDER) (LAUNDER) (LAUNDER) (LAUNDER) (LAUNDER) C2-3410-SA-103 C2-3410-SA-203 PROCESS WATER 1028 3400-25J-003 ROUGHER CONC. ROUGHER CONCENTRATE ROW NO.1 SAMPLER 1031 3400-25J-005 T1 SCAVENGER TAIL. SCAV. FLOTATION CELL NO.1 ROW NO.1, C2-3410-CF-103 1006 3400-25J-001 PROCESS WATER 1007 3400-25J-001 PROCESS WATER 1030 3400-25J-003 SCAVENGER CONC. SCAV. CONC. LAUNDER ROW NO.1, C2-3410-LA-104 1008 3400-25J-001 SCAVENGER TAIL. SCAV. FLOTATION CELL NO.1 ROW NO.1, C2-3410-CF-103 1005 3400-25J-001 ROUGHER CONC. ROUGHER CONCENTRATE ROW NO.2 SAMPLER 1023 3400-25J-005 SCAVENGER TAIL. SCAVENGER CELL NO.4, ROW NO.2, C2-3410-CF-206 1022 3400-25J-003 T1 SCAVENGER TAIL. SCAVENGER CELL NO.4, ROW NO.2, C2-3410-CF-206 1032 3400-25J-003 SCAVENGER TAIL. SCAVENGER CELL NO. 4, ROW NO. 1, C2-3410-CF-106 1037 3400-25J-003 SCAVENGER CONC. SCAVENGER CONC. LAUNDER, C2-3410-LA-204 1035 3400-25J-003 SCAVENGER TAIL. SCAV. FLOTATION CELL NO.1 ROW NO.2, C2-3410-CF-203 1017 3400-25J-001 SCAVENGER TAIL. SCAV. FLOTATION CELL NO.1 ROW NO.2, C2-3410-CF-203 1014 3400-25J-001 SCAVENGER CONC. SCAVENGER CONCENTRATE LAUNDER, C2-3410-LA-104 1034 3400-25J-003 SCAVENGER TAIL. SCAVENGER CELL NO. 4, ROW NO. 1, C2-3410-CF-106 1038 3400-25J-003 T1 SCAVENGER CONC. SCAV. CONC. LAUNDER ROW NO.2, C2-3410-LA-204 1015 3400-25J-001 ROUGHER CONC. ROUGHER CONC. LAUNDER ROW NO.1, C2-3410-LA-103 1009 3400-25J-001 ROUGHER CONC. ROUGHER CONCENTRATE LAUNDER ROW NO.2, 1013 3400-25J-001 PROCESS WATER 1016 3400-25J-001 T1 3410-SL-1097-R1B-28"-N 3930-WR-1206-C1A-3"-N SIZE: C2-3410-ST-169 SCAVENGER FLOTATION CONC. DIST. BOX NO.1 ROW NO.1 3410-WR-1505-C1A-1-1/2"-N 3410-SL-1096-R1A-18"-N SIZE: 255 MATERIAL: MOTOR: 300.00 kW C2-3410-CF-205 SCAVENGER FLOTATION CELL NO. 3, ROW NO. 2 3930-WR-1207-C1A-3"-N 3410-WR-1532-C1A-2"-N 3410-WR-1508-C1A-1-1/2"-N 3410-SL-1098-R1A-28"-N 3410-WR-1507-C1A-1-1/2"-N 3410-WR-1533-C1A-1-1/2"-N 3930-WR-1206-C1A-3"-N 3410-WR-1536-C1A-1-1/2"-N 3930-WR-1207-C1A-3"-N 3930-SL-1095-R1A-18"-N SIZE: 255 MATERIAL: MOTOR: 300.00 kW C2-3410-CF-104 SCAVENGER FLOTATION CELL NO. 2, ROW NO. 1 SIZE: 255 MATERIAL: MOTOR: 300.00 kW C2-3410-CF-204 SCAVENGER FLOTATION CELL NO. 2, ROW NO. 2 3410-WR-1506-C1A-2"-N 3410-WR-1504-C1A-2"-N 3410-WR-1535-C1A-1-1/2"-N SIZE: 255 MATERIAL: MOTOR: 300.00 kW C2-3410-CF-105 SCAVENGER FLOTATION CELL NO. 3, ROW NO. 1 3410-WR-1534-C1A-2"-N SIZE: C2-3410-ST-269 SCAVENGER FLOTATION CONC. DIST. BOX NO.2 ROW NO.2 3410-WR-1549-C1A-1-1/2"-N AG KM LT ISSUED FOR CLIENT REVIEW 22-Dec-11 B RP ISSUED FOR COMBINED REVIEW 29-Jun-11 A 12/22/2011 K. MUNDY A.GUNSON W. BIE L.TAMELIN 12/22/2011 2:34:54 PM WBS: 3400 B PIPING AND INSTRUMENTATION DIAGRAM FLOTATION 3400-25J-002 SCAV ROWS 1 & 2 CELLS 2 & 3 3410 00204 ZS 3410 00205 ZS 3410 00204 XA 3410 00205 XA 3410 00221 ZS 3410 00225 ZS 3410 00221 XA 3410 00225 XA OP/CL OP/CL OP/CL OP/CL MISMATCH MISMATCH MISMATCH MISMATCH V V V V V V V V V V V V V V V 3410-SL-1099-R1B-28"-N 3410-SL-1100-R1B-28"-N FI FI FI FI V V V V V V V V V V V V V V V V C2-3410-LA-203 SECONDARY COLLECTOR INJECTOR, C2-3910-ZM-622 1386 3900-25J-002 MOLY COLLECTOR INJECTOR, C2-3910-ZM-586 1387 3900-25J-003 SECONDARY COLLECTOR INJECTOR, C2-3910-ZM-623 1385 3900-25J-002 3410-RC-1044-C1D-1"-N 3410-RC-1081-C1D-1"-N 3410-RC-1043-C1D-1"-N 3410-RC-1080-C1D-1"-N IMAGE IMAGE IMAGE IMAGE MOLY COLLECTOR INJECTOR, C2-3910-ZM-587 3802 3900-25J-003 FROTHER ALCOHOL INJECTOR, C2-3910-ZM-689 4105 3900-25J-006 SCAV CONCENTRATE SCAV. FLOTATION CELL NO.1 ROW NO.1, C2-3410-CF-103 4092 3400-25J-001 SCAV. CONCENTRATE SCAV. FLOTATION CELL NO.1 ROW NO.2, C2-3410-CF-203 4093 3400-25J-001 FROTHER ALCOHOL INJECTOR, C2-3910-ZM-690 4107 3900-25J-006 3410-SL-1798-R1B-28"-N 3410-RF- -C1D-1"-N 3410-RF-16688-C1D-1"-N 3410-SL-1797-RIB-28"-N
  • 138.
    VENDOR VENDOR 3410 00391 II 3410 00391 XA FAULT 3410 00322 LIT 3410 00313 AT 3410 00311 LIC 3410 00311 LIT 3410 00323 AT 3410 00322 LI 3410 00323 AI 3410 00303 AI 3410 00303 AT 3410 00332 LIT 3410 00382 II 3410 00331 LIC 3410 00392 II 3410 00302 LI 3410 00301 LIC 3410 00313 AI 3410 00301 LIT 3410 00332 LE 3410 00382 XA FAULT 3410 00302 LIT 3410 00312 LIT 3410 00312 LI 3410 00333 AT 3410 00381 XAFAULT 3410 00321 LIT 3410 00382 HS 3410 00381 II 3410 00321 LIC 3410 00333 AI 3410 00381 HS 3410 00331 LE 3410 00322 LE 3410 00302 LE 3410 00332 LI 3410 00301 LE 3410 00321 LE 3410 00391 HS 3410 00312 LE 3410 00311 LE 3410 00392 XA FAULT 3410 00392 HS 3410 00331 LIT MIN. MIN. MIN. MIN. TO ATM TO ATM TO ATM TO ATM AIR INTAKE MIN. J/SP J/SP MIN. AIR INTAKE MIN. J/SP AIR INTAKE J/SP VENDOR VENDOR VENDOR VENDOR MIN. AIR INTAKE VENDOR VENDOR VENDOR VENDOR VENDOR (LAUNDER) VENDOR (LAUNDER) (LAUNDER) (LAUNDER) VENDOR VENDOR VENDOR VENDOR VENDOR VENDOR VENDOR VENDOR 28"x18" 1-1/2"x1/2" 1-1/2"x1/2" C2-3410-CF-107 C2-3410-CF-106 C2-3410-CF-206 C2-3410-CF-207 1-1/2"x1/2" 1-1/2"x1/2" 28"x18" 28"x18" 12" 12" 12" 12" 28"x18" 3410 00331 A LV + 3410 00331 B LV + 3410 00311 B LV + 3410 00311 A LV + 3410 00301 A LV + 3410 00301 B LV + 3410 00321 A LV + 3410 00321 B LV + D 4 F B A 3 2 1 5 6 8 E 7 C REV. APPROVED CHK. DES. REV. DATE REVISION DESCRIPTION CLIENT LEAD ENGINEER SCALE DRAWING NUMBER CHECK DESIGN CHECK DRAWING DESIGNED BY DRAWN BY APPROVAL DATE APPROVAL DATE APPROVED CHK. DES. REV. DATE REVISION DESCRIPTION REFERENCE DRAWING No. 1:100 0 1:200 5m 10m 0 5m 10m 15m 20m 1:500 10m 0 20m 30m 40m 50m 1:1000 0 100m 50m 1:20 0 0.5m 1m 1.5m 2m 0 1:25 0.5m 1m 1.5m 1:33 1/3 2.5m 2m 0 1m 2m 3m 0 1:50 1m 2m 3m 4m 5m CAD FILE NAME: P:0CAD000SPEM** MODEL UPDATED: DWG. FILE UPDATED: MANUAL CHANGES MADE: YES NO YES NO YES NO PROJECT MANAGER ENGINEERING MANAGER AREA PROJECT ENGINEER REFERENCE DRAWINGS SAFETY SHARE: APPROVAL DATE CONTRACT NO. SAFETY SHARE : BA6CVA1.IGR NOTICE: THIS DRAWING HAS NOT BEEN PUBLISHED AND IS THE SOLE PROPERTY OF FLUOR AND IS LENT TO THE BORROWER FOR THEIR CONFIDENTIAL USE ONLY, AND IN CONSIDERATION OF THE LOAN OF THIS DRAWING, THE BORROWER PROMISES AND AGREES TO RETURN IT UPON REQUEST AND AGREES THAT IT WILL NOT BE REPRODUCED, COPIED LENT OR OTHERWISE DISPOSED OF DIRECTLY OR INDIRECTLY, NOR USED FOR ANY OTHER PURPOSE OTHER THAN WHICH IT IS FURNISHED. NONE Apr 2011 240K-C2- PROCESS WATER 1028 3400-25J-002 SCAVENGER CONC. SCAV. CONC. LAUNDER ROW NO.1, C2-3410-LA-104 1045 3400-25J-004 SCAVENGER TAIL. SCAVENGER CELL NO. 6 ROW NO. 2, C2-3410-CF-208 1048 3400-25J-004 T1 SCAVENGER TAIL. SCAV. CELL NO. 6 ROW NO. 1, C2-3410-CF-108 1043 3400-25J-004 T1 SCAVENGER TAIL. SCAV. FLOTATION CELL NO. 3 ROW NO. 2, C2-3410-CF-205 1022 3400-25J-002 SCAVENGER CONC. SCAVENGER CONCENTRATE LAUNDER, C2-3410-LA-104 1034 3400-25J-002 SCAVENGER TAIL. SCAV. FLOTATION CELL NO. 3 ROW NO. 2, C2-3410-CF-205 1032 3400-25J-002 T1 SCAVENGER TAIL. SCAVENGER CELL NO.5 ROW NO.2, C2-3410-CF-207 1047 3400-25J-004 T1 SCAVENGER CONC. SCAVENGER CONCENTRATE LAUNDER, C2-3410-LA-204 1035 3400-25J-002 PROCESS WATER 1042 3400-25J-004 SCAVENGER CONC. SCAV. CONC. LAUNDER ROW NO.2, C2-3410-LA-204 1049 3400-25J-004 PROCESS WATER 1030 3400-25J-002 SCAVENGER TAIL. SCAV. CELL NO. 6 ROW NO. 1, C2-3410-CF-108 1044 3400-25J-004 SCAVENGER TAIL. SCAV. FLOTATION CELL NO. 3 ROW NO. 1, C2-3410-CF-105 1037 3400-25J-002 PROCESS WATER 1046 3400-25J-004 SCAVENGER TAIL. SCAV. FLOTATION CELL NO. 3 ROW NO. 1, C2-3410-CF-105 1038 3400-25J-002 SIZE: 255 m3 MATERIAL: MOTOR: 300.00 kW C2-3410-CF-206 SCAVENGER FLOTATION CELL NO. 4 ROW NO. 2 3410-WR-1514-C1A-2"-N 3410-SL-1105-R1B-28"-N 3930-WR-1207-C1A-3"-N 3410-WR-1513-C1A-1-1/2"-N SIZE: 255 m3 MATERIAL: MOTOR: 300.00 kW C2-3410-CF-107 SCAVENGER FLOTATION CELL NO. 5 ROW NO. 1 3410-WR-1540-C1A-2"-N 3930-WR-1206-C1A-3"-N 3930-WR-1207-C1A-3"-N 3410-WR-1512-C1A-1-1/2"-N SIZE: 255 m3 MATERIAL: MOTOR: 300.00 kW C2-3410-CF-106 SCAVENGER FLOTATION CELL NO. 4 ROW NO. 1 3410-SL-1106-R1B-28"-N 3410-WR-1537-C1A-2"-N 3410-WR-1511-C1A-1-1/2"-N 3410-WR-1538-C1A-1-1/2"-N SIZE: 255 m3 MATERIAL: MOTOR: 300.00 kW C2-3410-CF-207 SCAVENGER FLOTATION CELL NO. 5 ROW NO. 2 3410-SL-1103-R1B-28"-N 3410-WR-1510-C1A-2"-N 3410-WR-1541-C1A-1-1/2"-N 3410-WR-1515-C1A-1-1/2"-N 3410-WR-1509-C1A-1-1/2"-N 3410-WR-1550-C1A-1-1/2"-N 3410-SL-1104-R1B-28"-N 3410-WR-1539-C1A-1-1/2"-N AG KM LT ISSUED FOR CLIENT REVIEW 22-Dec-11 B RP ISSUED FOR COMBINED REVIEW 29-Jun-11 A 12/22/2011 K. MUNDY A. GUNSON W. BIE L. TAMELIN 12/21/2011 5:30:11 PM WBS: 3400 B PIPING AND INSTRUMENTATION DIAGRAM FLOTATION 3400-25J-003 SCAV ROWS 1 & 2, CELLS 4 & 5 V V V V V V V V V V V V V V V V V V V V V V V V IMAGE IMAGE IMAGE IMAGE
  • 139.
    3410 00412 LI 3410 00411 LE 3410 00412 LIT 3410 00412 LE 3410 00411 LIT 3410 00482 XA FAULT 3410 00411 LIC 3410 00432 LE 3410 00413 AT 3410 00432 LI 3410 00413 AI 3410 00431 LE 3410 00492 II 3410 00433 AI 3410 00431 LIC 3410 00482 II 3410 00432 LIT 3410 00482 HS 3410 00431 LIT 3410 00492 HS 3410 00433 AT 3410 00492 XA TO ATM MIN. TOATM MIN. MIN. AIR INTAKE VENDOR MIN. AIR INTAKE J/SP J/SP VENDOR VENDOR VENDOR VENDOR VENDOR VENDOR VENDOR (LAUNDER) 3410 00431 LV + C2-3410-CF-108 C2-3410-CF-208 3410 00411 LV + C2-3410-SA-202 C2-3410-AZ-203 C2-3410-SA-102 C2-3410-AZ-103 12" 12" 28"x18" 1-1/2"x1/2" 28"x18" 1-1/2"x1/2" D 4 F B A 3 2 1 5 6 8 E 7 C REV. APPROVED CHK. DES. REV. DATE REVISION DESCRIPTION CLIENT LEAD ENGINEER SCALE DRAWING NUMBER CHECK DESIGN CHECK DRAWING DESIGNED BY DRAWN BY APPROVAL DATE APPROVAL DATE APPROVED CHK. DES. REV. DATE REVISION DESCRIPTION REFERENCE DRAWING No. 1:100 0 1:200 5m 10m 0 5m 10m 15m 20m 1:500 10m 0 20m 30m 40m 50m 1:1000 0 100m 50m 1:20 0 0.5m 1m 1.5m 2m 0 1:25 0.5m 1m 1.5m 1:33 1/3 2.5m 2m 0 1m 2m 3m 0 1:50 1m 2m 3m 4m 5m CAD FILE NAME: P:0CAD000SPEM** MODEL UPDATED: DWG. FILE UPDATED: MANUAL CHANGES MADE: YES NO YES NO YES NO PROJECT MANAGER ENGINEERING MANAGER AREA PROJECT ENGINEER REFERENCE DRAWINGS SAFETY SHARE: APPROVAL DATE CONTRACT NO. SAFETY SHARE : BA6CVA1.IGR NOTICE: THIS DRAWING HAS NOT BEEN PUBLISHED AND IS THE SOLE PROPERTY OF FLUOR AND IS LENT TO THE BORROWER FOR THEIR CONFIDENTIAL USE ONLY, AND IN CONSIDERATION OF THE LOAN OF THIS DRAWING, THE BORROWER PROMISES AND AGREES TO RETURN IT UPON REQUEST AND AGREES THAT IT WILL NOT BE REPRODUCED, COPIED LENT OR OTHERWISE DISPOSED OF DIRECTLY OR INDIRECTLY, NOR USED FOR ANY OTHER PURPOSE OTHER THAN WHICH IT IS FURNISHED. NONE Apr 2011 240K-C2- (LAUNDER) (LAUNDER) (LAUNDER) SCAVENGER TAIL. SCAV. ROW NO.1 CONC. PRIM. SAMPLER, C2-3410-SA-104 1388 3400-25J-005 PROCESS WATER CONCENTRATE SAMPLERS, C2-3410-SA-103/104/203/204 1389 3400-25J-005 SCAVENGER TAIL. SCAV. ROW NO.2 CONC. PRIM. SAMPLER, C2-3410-SA-204 1390 3400-25J-005 SCAVENGER TAIL. PLANT TAILING COLLECTION LAUNDER, C2-3710-LA-001 1050 3700-25J-001 T1 SCAVENGER CONC. SCAV. CONC. LAUNDER ROW NO.2, C2-3410-LA-204 1049 3400-25J-003 SCAVENGER CONC. SCAV. CONC. LAUNDER ROW NO.1, C2-3410-LA-104 1045 3400-25J-003 PROCESS WATER 1042 3400-25J-003 T1 SCAVENGER TAIL. SCAV. FLOTATION CELL NO. 5 ROW NO. 1, C2-3410-CF-107 1044 3400-25J-003 PROCESS WATER 1046 3400-25J-003 SCAVENGER TAIL. SCAV. FLOTATION CELL NO. 5 ROW NO. 2, C2-3410-CF-207 1048 3400-25J-003 SCAVENGER TAIL. SCAV. FLOTATION CELL NO. 5 ROW NO. 1, C2-3410-CF-107 1043 3400-25J-003 SCAVENGER TAIL. PLANT TAILING COLLECTION LAUNDER C2-3710-LA-001 1051 3700-25J-001 SCAVENGER TAIL. SCAV. FLOTATION CELL NO. 5 ROW NO. 2, C2-3410-CF-207 1047 3400-25J-003 3410-WR-1519-C1A-1-1/2"-N 3410-WR-1520-C1A-1-1/2"-N 3930-WR-1206-C1A-3"-N SIZE: C2-3410-AZ-203 SCAVENGER TAILING ROW NO. 2 ANALYZER 3930-WR-1207-C1A-3"-N SIZE: 255 m3 MATERIAL: MOTOR: 300.00 kW C2-3410-CF-208 SCAVENGER FLOTATION CELL NO. 6 ROW NO. 2 3410-WR-1522-C1A-1-1/2"-N 3930-WR-1206-C1A-3"-N SIZE: 255 m3 MATERIAL: MOTOR: 300.00 kW C2-3410-CF-108 SCAVENGER FLOTATION CELL NO. 6 ROW NO. 1 3410-SL-1109-R1B-28"-N 3410-WR-1545-C1A-2"-N SIZE: C2-3410-SA-102 SCAVENGER TAILING ROW NO. 1 SAMPLER 3410-SL-1110-R1B-28"-N 3410-WR-1521-C1A-2"-N 3410-WR-1544-C1A-1-1/2"-N 3410-WR-1546-C1A-1-1/2"-N 3410-WR-1523-C1A-1-1/2"-N 3410-WR-1551-C1A-1-1/2"-N SIZE: C2-3410-SA-202 SCAVENGER TAILING ROW NO. 2 SAMPLER SIZE: C2-3410-AZ-103 SCAVENGER TAILING ROW NO. 1 ANALYZER 3410-WR-1524-C1A-1-1/2"-N AG KM LT ISSUED FOR CLIENT REVIEW 22-Dec-11 B RP ISSUED FOR COMBINED REVIEW 29-Jun-11 A 12/22/2011 K. MUNDY A. GUNSON W. BIE L. TAMELIN 12/21/2011 5:33:08 PM WBS: 3400 B PIPING AND INSTRUMENTATION DIAGRAM FLOTATION 3400-25J-004 SCAV ROWS 1 & 2 CELL 6 AND TAIL SAMPLING 3930-WR-1207-C1A-3"-N FAULT V V 3410-SL-1661-R1A-48"-N 3410-SL-1662-R1A-48"-N V V V V V V V V IMAGE IMAGE
  • 140.
    3410-AA-1001-C1A-6"-N NOTE 1 ROUGHER CONCENTRATE ROUGHERCONC. ROW NO. 3 SAMPLER, C2-3410-SA-303 1434 3400-25J-013 ROUGHER CONCENTRATE ROUGHER CONC. ROW NO. 4 SAMPLER, C2-3410-SA-403 1435 3400-25J-013 ROUGHER CONCENTRATE ROUGHER CONC. ROW NO. 5 SAMPLER, C2-3410-SA-503 1436 3400-25J-021 ROUGHER CONCENTRATE ROUGHER CONC. ROW NO. 6 SAMPLER, C2-3410-SA-603 1437 3400-25J-021 ROUGHER CONCENTRATE ROUGHER CONC. ROW NO 3 ANALYZER, C2-3410-AZ-304 1438 3400-25J-013 ROUGHER CONCENTRATE ROUGHER CONC. ROW NO. 4 ANALYZER, C2-3410-AZ-304 1439 3400-25J-013 ROUGHER CONCENTRATE ROUGHER CONC. ROW NO. 5 ANALYZER, C2-3410-AZ-504 1440 3400-25J-021 ROUGHER CONCENTRATE ROUGHER CONC. ROW NO. 6 ANALYZER, C2-3410-AZ-504 1442 3400-25J-021 SCAV. CONCENTRATE SCAVENGER CONC. ROW NO. 3 SAMPLER, C2-3410-SA-304 1444 3400-25J-013 SCAV. CONCENTRATE SCAVENGER CONC. ROW 4 SAMPLER, C2-3410-SA-404 1445 3400-25J-013 SCAV. CONCENTRATE SCAVENGER CONC. ROW NO. 5 SAMPLER, C2-3410-SA-504 1446 3400-25J-021 SCAV. CONCENTRATE SCAVENGER CONC. ROW NO. 6 SAMPLER, C2-3410-SA-604 1447 3400-25J-021 SCAV. CONCENTRATE SCAVENGER CONC. ROW NO. 4 ANALYZER, C2-3410-AZ-304 1452 3400-25J-013 SCAV. CONCENTRATE SCAVENGER CONC. ROW NO. 6 ANALYZER, C2-3410-AZ-504 1450 3400-25J-021 SCAV. CONCENTRATE SCAVENGER CONC. ROW NO. 5 ANALYZER, C2-3410-AZ-504 1451 3400-25J-021 SCAV. CONCENTRATE SCAVENGER CONC. ROW NO. 3 ANALYZER, C2-3410-AZ-304 1453 3400-25J-013 ROUGHER CONCENTRATE ROUGHER CONCENTRATE COLLECTION PUMPBOX, 1429 3400-25J-022 SCAV. CONCENTRATE SCAVENGER CONCENTRATE COLLECTION PUMPBOX, 1430 3400-25J-026 FRESH WATER 1431 5100-25J-014 SCAV. CONCENTRATE SCAVENGER CONC. LAUNDER ROW NO. 1, C2-3410-LA-104 1388 3400-25J-004 SCAV. CONCENTRATE SCAVENGER CONC. LAUNDER ROW NO. 2, C2-3410-LA-204 1390 3400-25J-004 C2-3420-BX-502 C2-3420-BX-504 SLOPE SLOPE SLOPE SLOPE SLOPE SLOPE VENT VENT FLUOR VENDOR NOTE 1 NOTE 1 NOTE 1 NOTES: 1. PROVISION FOR SHIFT SAMPLE SIZE: MATERIAL: CAPACITY: TRIM: C2-3410-SA-204 SCAVENGER CONCENTRATE ROW NO. 2 SAMPLER SIZE: MATERIAL: CAPACITY: TRIM: C2-3410-SA-203 ROUGHER CONCENTRATE ROW NO. 2 SAMPLER SIZE: MATERIAL: CAPACITY: TRIM: C2-3410-SA-104 SCAVENGER CONCENTRATE ROW NO. 1 SAMPLER SIZE: MATERIAL: CAPACITY: TRIM: C2-3410-SA-103 ROUGHER CONCENTRATE ROW NO. 1 SAMPLER 3410-WF-1170-C1A-2"-N 3410-SL-1095-R1A-18"-N 3410-SL-1096-R1A-18"-N 3410-SL-1146-R1A-12"-N 3410-SL-1145-R1A-12"-N 3410-SL-1178-R1A-12"-N 3410-SL-1177-R1A-12"-N 3410-SL-1150-R1A-4"-N 3410-SL-1149-R1A-4"-N 3410-SL-1180-R1A-4"-N 3410-SL-1179-R1A-4"-N 3410-WR-1206-C1A-3"-N 3410-SL- -R1A-18"-N 3410-SL- -R1A-18"-N 3410-SL-1151-R1A-18"-N 3410-SL-1152-R1A-18"-N 3410-SL-1183-R1A-18"-N 3410-SL-1184-R1A-18"-N 3410-SL-1147-R1A-4"-N 3410-SL-1148-R1A-4"-N 3410-SL-1181-R1A-4"-N 3410-SL-1182-R1A-4"-N 3410-SL-1124-R1A-24"-N 3410-SL-1123-R1A-4"-N 3410-SL-1122-R1A-4"-N 3410-SL-1119-R1A-24"-N 3410-SL-1113-R1A-18"-N 18"x16" 18"x16" 1-1/2"x1" 1-1/2"x1" 1-1/2"x1-1/2" 18"x16" 1-1/2"x1" 18"x16" 3410-SL-1120-R1A-18"-N 3410-SL-1121-R1A-18"-N 3410-SL-1112-R1A-4"-N 3410-SL-1111-R1A-4"-N 3410-SL-1114-R1A-18"-N 3410-SL-1115-R1A-6"-N 3410-SL-1116-R1A-6"-N 3410-SL-1117-R1A-6"-N 3410-SL-1118-R1A-6"-N V V V V V V V V 2"x1/2" V SIZE: C2-3410-AZ-104 ROUGHER/SCAVENGER CONCENTRATE ROWS NO. 1 AND NO. 2 INSTREAM ANALYZER C2-3410-AZ-104 C2-3410-SA-103 C2-3410-SA-203 C2-3410-SA-104 C2-3410-SA-204 3410-AA-1002-C1A-6"-N 3410-SL-1119-R1A-24"-N 24"x24" 3410-SL-1124-R1A-24"-N D 4 F B A 3 2 1 5 6 8 E 7 C REV. APPROVED CHK. DES. REV. DATE REVISION DESCRIPTION CLIENT LEAD ENGINEER SCALE DRAWING NUMBER CHECK DESIGN CHECK DRAWING DESIGNED BY DRAWN BY APPROVAL DATE APPROVAL DATE APPROVED CHK. DES. REV. DATE REVISION DESCRIPTION REFERENCE DRAWING No. 1:100 0 1:200 5m 10m 0 5m 10m 15m 20m 1:500 10m 0 20m 30m 40m 50m 1:1000 0 100m 50m 1:20 0 0.5m 1m 1.5m 2m 0 1:25 0.5m 1m 1.5m 1:33 1/3 2.5m 2m 0 1m 2m 3m 0 1:50 1m 2m 3m 4m 5m CAD FILE NAME: P:0CAD000SPEM** MODEL UPDATED: DWG. FILE UPDATED: MANUAL CHANGES MADE: YES NO YES NO YES NO PROJECT MANAGER ENGINEERING MANAGER AREA PROJECT ENGINEER REFERENCE DRAWINGS SAFETY SHARE: APPROVAL DATE CONTRACT NO. SAFETY SHARE : BA6CVA1.IGR NOTICE: THIS DRAWING HAS NOT BEEN PUBLISHED AND IS THE SOLE PROPERTY OF FLUOR AND IS LENT TO THE BORROWER FOR THEIR CONFIDENTIAL USE ONLY, AND IN CONSIDERATION OF THE LOAN OF THIS DRAWING, THE BORROWER PROMISES AND AGREES TO RETURN IT UPON REQUEST AND AGREES THAT IT WILL NOT BE REPRODUCED, COPIED LENT OR OTHERWISE DISPOSED OF DIRECTLY OR INDIRECTLY, NOR USED FOR ANY OTHER PURPOSE OTHER THAN WHICH IT IS FURNISHED. NONE Apr 2011 240K-C2- AI AG KM LT ISSUED FOR CLIENT REVIEW 22-Dec-11 B RP ISSUED FOR COMBINED REVIEW 29-Jun-11 A 12/22/2011 K. MUNDY A. GUNSON W. BIE L. TAMELIN 12/20/2011 4:43:24 PM WBS: 3400 B PIPING AND INSTRUMENTATION DIAGRAM FLOTATION 3400-25J-005 CONCENTRATE SAMPLING ROWS 1 & 2 ROUGHER CONCENTRATE ROUGHER CONC. LAUNDER ROW NO.1, C2-3410-LA-203 1031 3400-25J-002 ROUGHER CONCENTRATE ROUGHER CONC.LAUNDER ROW NO.2, C2-3410-LA-203 1023 3400-25J-002 3410-WR-1556-C1A-1-1/2"-P 3410-WR-1554-C1A-1-1/2"-N 3400-WR-1553-C1A-1-1/2"-N 3410-WR-1555-C1A-1-1/2"-N PROCESS WATER 1389 3400-25J-004
  • 141.
    T1 T1 T1 T1 T1 T1 VENDOR VENDOR 3410 00643 AT 3410 00622 LE 3410 00651 LIC 3410 00611 LIC 3410 00683 HS 3410 00692 XA FAULT 3410 00691 II 3410 00652 LE 3410 00641 LIC 3410 00633 AI 3410 00612 LE 3410 00613 AT 3400 00624 XA 3410 00681 II 3410 00601 LIT 3410 00643 AI 3410 00683 II 3410 00683 XA FAULT 3410 00602 LI 3410 00693 HS 3410 00693 XAFAULT 3410 00651 LE 3410 00642 LI 3410 00692 II 3410 00611 LE 3410 00613 AI 3410 00623 AI 3410 00632 LI 3410 00631 LIT 3410 00693 II 3410 00603 AI 3410 00612 LI 3410 00631 LE 3410 00621 LIC 3410 00653 AI 3410 00682 XA FAULT 3410 00611 LE 3410 00651 LIT 3410 00681 HS 3410 00682 II 3410 00691 XA FAULT 3410 00652 LI 3410 00602 LE 3410 00633 AT 3410 00612 LIT 3410 00622 LI 3410 00691 HS 3410 00632 LE 3410 00641 LE 3410 00603 AT 3410 00692 HS 3410 00642 LIT 3410 00632 LIT 3410 00601 LIC 3410 00681 XA FAULT 3410 00621 LE 3410 00622 LIT 3410 00623 AT 3400 00605 XS 3400 00605 ZS 3400 00604 ZS 3400 00604 XS 3400 00625 XA 3400 00624 ZS 3400 00625 ZS 3410 00602 LIT 3410 00641 LIT 3410 00682 HS 3410 00621 LIT 3410 00653 AT 3410 00652 LIT 3410 00631 LIC 3410 00642 LE 3410 00611 LIT PH CONTROL 2813 3400-25J-045 PROCESS WATER 1097 3400-25J-007 SCAVENGER TAILING SCAVENGER CELL NO.2 ROW NO.3, C2-3410-CF-304 1098 3400-25J-007 PRIMARY CYCLONE O/F BALL MILL NO.4 O/F SAMPLER, C2-3330-ST-704 1106 3300-25J-035 SCAVENGER TAILING SCAVENGER CELL NO.2 ROW NO.3, C2-3410-CF-304 1099 3400-25J-007 MILK OF LIME LIME DISTRIBUTION PUMPS C2-3920-PP-093/094 1393 3900-25J-012 SCAV. CONCENTRATE SCAVENGER CONCENTRATE LAUNDER, C2-3410-LA-404 1100 3400-25J-007 TEST REAGENT INJECTOR, C2-3910-ZM-699 1111 3900-25J-004 PRIMARY CYCLONE O/F PARTICLE SIZE ANALYZER, C2-3330-AZ-301 1105 3300-25J-035 MILK OF LIME LIME DISTRIBUTION PUMPS C2-3920-PP-093/094 1392 3900-25J-012 FROTHER ALCOHOL INJECTOR, C2-3910-ZM-683 1107 3900-25J-006 TEST REAGENT INJECTOR, C2-3910-ZM-700 1114 3900-25J-004 PRIMARY CYCLONE O/F BALL MILL NO.3 O/F SAMPLER, C2-3330-SA-301 1103 3300-25J-035 PROCESS WATER 1108 3400-25J-007 FROTHER ALCOHOL INJECTOR, C2-3910-ZM-684 1110 3900-25J-006 SCAVENGER TAILING SCAVENGER CELL NO.2 ROW NO.4, C2-3410-CF-404 1113 3400-25J-007 SCAV. CONCENTRATE SCAVENGER CONCENTRATE LAUNDER, C2-3410-LA-304 1115 3400-25J-007 PH CONTROL 1395 3400-25J-042 SCAVENGER TAILING SCAVENGER CELL NO.2 ROW NO.4, C2-3410-CF-404 1102 3400-25J-007 ROUGHER CONCENTRATE ROUGHER CONCENTRATE LAUNDER,C2-3410-LA-303 1116 3400-25J-007 PRIMARY CYCLONE O/F PARTICLE ANALYZER, C2-3330-AZ-301 1104 3300-25J-035 ROUGHER CONCENTRATE ROUGHER CONCENTRATE LAUNDER, C2-3410-LA-403 1109 3400-25J-007 (LAUNDER) VENDOR VENDOR VENDOR VENDOR VENDOR J/SP AIR INTAKE VENDOR AIR INTAKE J/SP AIR INTAKE VENDOR AIR INTAKE VENDOR AIR INTAKE J/SP AIR INTAKE J/SP VENDOR (LAUNDER) VENDOR J/SP VENDOR J/SP VENDOR VENDOR VENDOR MIN MIN MIN MIN MIN MIN MIN MIN 3410-WR-1584-C1A-2"-N 1-1/2"x1/2" 3410 00624 XV + 3410 00651 A LV + 3410-WR-1588-C1A-2"-N 3"x1-1/2" 1-1/2"x1/2" 3430 04201 C AV + 3410-SL-1125-R1B-28"-N 3410-WR-1561-C1A-2"-N C2-3410-CF-401 C2-3410-CF-301 C2-3410-CF-403 3410-SL-1128-R1A-18"-N 3410 00625 XV + 3410-WR-1585-C1A-1-1/2"-N 12" C2-3410-LA-304 3930-WR-1575-C1A-3"-N 1-1/2"x1/2" 3"x1-1/2" 3410 00604 XV + 1-1/2"x1/2" 3410-WR-1605-C1A-1-1/2"-N C2-3410-LA-404 12" 3410-WR-1600-C1A-2"-N C2-3410-LA-403 3410-SL-1126-R1B-28"-N 12" 3"x1-1/2" 3410-WR-1583-C1A-1-1/2"-N 3410 00601 A LV + 3410 00605 XV + C2-3410-LA-303 3930-WR-1204-C1A-3"-N 12" 12" 3410 00631 A LV + 3"x1-1/2" 3410-SL-1127-R1A-18"-N C2-3410-CF-303 3410 00631 B LV + 3410 04508 C AV + 3410 00611 A LV + 3410-WR-1575-C1A-2"-N C2-3410-CF-402 3410 00621 A LV + 12" C2-3410-ST-368 3410-WR-1601-C1A-1-1/2"-N 3410-WR-1557-C1A-2"-N 3410 00641 B LV + 3410-WR-1576-C1A-1-1/2"-N SIZE: 255 m3 MATERIAL: MOTOR: 300.00 kW C2-3410-CF-301 ROUGHER FLOTATION CELL NO.1 ROW NO.3 3410-WR-1559-C1A-1-1/2"-N 3410-WR-1589-C1A-1-1/2"-N SIZE: C2-3410-LA-404 SCAVENGER CONCENTRATE LAUNDER ROW NO.4 1-1/2"x1/2" SIZE: C2-3410-LA-304 SCAVENGER CONCENTRATE LAUNDER ROW NO.3 3410 00601 B LV + 3410 00641 A LV + C2-3410-CF-302 C2-3410-ST-468 3410-WR-1562-C1A-1-1/2"-N SIZE: 255 m3 MOTOR: 300.00 kW C2-3410-CF-403 SCAVENGER FLOTATION CELL NO.1 ROW NO.4 SIZE: C2-3410-LA-403 ROUGHER CONCENTRATE LAUNDER ROW NO.4 3410 00611 B LV + SIZE: C2-3410-ST-468 ROUGHER FLOTATION CONC. DIST. BOX NO.4 ROW NO.4 28"x18" SIZE: 255 m3 MOTOR: 300.00 kW C2-3410-CF-401 ROUGHER FLOTATION CELL NO.1 ROW NO.4 28"x18" 3410-WR-1586-C1A-1-1/2"-N 3410-WR-1558-C1A-1-1/2"-N 3410 00651 B LV + SIZE: 255 m3 MOTOR: 300.00 kW C2-3410-CF-402 ROUGHER FLOTATION CELL NO.2 ROW NO.4 SIZE: 255 m3 MOTOR: 300.00 kW C2-3410-CF-302 ROUGHER FLOTATION CELL NO.2 ROW NO.3 1-1/2"x1/2" SIZE: 255 m3 MATERIAL: MOTOR: 300.00 kW C2-3410-CF-303 SCAVENGER FLOTATION CELL NO.1 ROW NO.3 3330-SL-16667-C1B-4"-N 3330-SL-16666-C1A-48"-N 3410-RF-1033-C1A-1"-N 3410-RC-1126-C1D-1"-N 3930-WR-1575-C1A-3"-N SIZE: C2-3410-LA-303 ROUGHER CONCENTRATE LAUNDER ROW NO.3 3410 00621 B LV + AG KM LT ISSUED FOR CLIENT REVIEW 22-Dec-11 B RP ISSUED FOR COMBINED REVIEW 29-Jun-11 A 12/22/2011 K. MUNDY A. GUNSON W. BIE L. TAMELIN 12/21/2011 5:35:00 PM WBS: 3400 B PIPING AND INSTRUMENTATION DIAGRAM FLOTATION 3400-25J-006 ROUGHER & SCAV ROWS 3 & 4 3410-RC-1127-C1D-1"-N 3410-RF-1034-C1D-1"-N 3330-SL-1084-RIB-48"-N 3330-SL-1054-CIB-4"-N V V V V V V 3410-SL-1137-R1B-28"-N V V V V V V V V 3410-SL-1159-R1B-28"-N FC FC 3410-RL-1017-C1B-1-1/2"-N 3410-RL-1016-C1B-1-1/2"-N V V V V V V V V V V V V V V 3410-SL-1138-R1B-28"-N V V V V V V 3410-SL-1160-R1B-28"-N V V V V V V D 4 F B A 3 2 1 5 6 8 E 7 C REV. APPROVED CHK. DES. REV. DATE REVISION DESCRIPTION CLIENT LEAD ENGINEER SCALE DRAWING NUMBER CHECK DESIGN CHECK DRAWING DESIGNED BY DRAWN BY APPROVAL DATE APPROVAL DATE APPROVED CHK. DES. REV. DATE REVISION DESCRIPTION REFERENCE DRAWING No. 1:100 0 1:200 5m 10m 0 5m 10m 15m 20m 1:500 10m 0 20m 30m 40m 50m 1:1000 0 100m 50m 1:20 0 0.5m 1m 1.5m 2m 0 1:25 0.5m 1m 1.5m 1:33 1/3 2.5m 2m 0 1m 2m 3m 0 1:50 1m 2m 3m 4m 5m CAD FILE NAME: P:0CAD000SPEM** MODEL UPDATED: DWG. FILE UPDATED: MANUAL CHANGES MADE: YES NO YES NO YES NO PROJECT MANAGER ENGINEERING MANAGER AREA PROJECT ENGINEER REFERENCE DRAWINGS SAFETY SHARE: APPROVAL DATE CONTRACT NO. SAFETY SHARE : BA6CVA1.IGR NOTICE: THIS DRAWING HAS NOT BEEN PUBLISHED AND IS THE SOLE PROPERTY OF FLUOR AND IS LENT TO THE BORROWER FOR THEIR CONFIDENTIAL USE ONLY, AND IN CONSIDERATION OF THE LOAN OF THIS DRAWING, THE BORROWER PROMISES AND AGREES TO RETURN IT UPON REQUEST AND AGREES THAT IT WILL NOT BE REPRODUCED, COPIED LENT OR OTHERWISE DISPOSED OF DIRECTLY OR INDIRECTLY, NOR USED FOR ANY OTHER PURPOSE OTHER THAN WHICH IT IS FURNISHED. NONE Apr 2011 240K-C2- FI FI FI FI 3930-WR-1204-C1A-3"-N PROCESS WATER 2894 3900-25J-015 PROCESS WATER 2895 3900-25J-015 IMAGE IMAGE IMAGE IMAGE IMAGE IMAGE SIZE: C2-3410-ST-368 ROUGHER FLOTATION CONC. DIST. BOX NO.4 ROW NO.4 SCAV. CONCENTRATE SCAV. CONC. DISTRIBUTION BOX NO.3, C2-3410-ST-369 4099 3400-25J-007 SCAV. CONCENTRATE SCAV. CONC. DISTRIBUTION BOX NO.4, C2-3410-ST-469 4100 3400-25J-007
  • 142.
    3410 00702 LIT 3410 00731 LIC 3410 00722 LE 3410 00732 LIT 3410 00782 XA FAULT 3410 00701 LIC 3410 00702 LI 3410 00701 LE 3410 00733 AI 3410 00711 LIC 3410 00791 XA FAULT 3410 00782 II 3410 00732 LI 3410 00703 AT 3410 00702 LE 3410 00791 II 3410 00703 AI 3410 00731 LE 3410 00792 HS 3410 00782 HS 3410 00711 LE 3410 00781 HS 3410 00723 AI 3410 00733 AT 3410 00713 AT 3410 00721 LIC 3410 00722 LI 3410 00723 AT 3410 00713 AI 3410 00722 LIT 3410 00791 HS 3410 00711 LIT 3410 00781 II 3410 00731 LIT 3410 00721 LIT 3410 00712 LE 3410 00732 LE 3410 00781 XAFAULT 3410 00721 LE 3410 00712 LI 3410 00712 LIT 3410 00792 XA FAULT 3410 00792 II 3410 00701 LIT VENDOR VENDOR VENDOR J/SP AIR INTAKE J/SP AIR INTAKE (LAUNDER) (LAUNDER) VENDOR J/SP VENDOR VENDOR J/SP VENDOR AIR INTAKE VENDOR AIR INTAKE VENDOR VENDOR VENDOR VENDOR VENDOR VENDOR VENDOR VENDOR VENDOR VENDOR VENDOR 12" 1-1/2"x1/2" 1-1/2"x1/2" C2-3410-CF-405 C2-3410-CF-404 C2-3410-CF-304 C2-3410-CF-305 3410 00725 XV + 3410 00724 XV + 3410 00701 A LV + 3410 00701 B LV + 3410 00704 XV + 3410 00705 XV + 12" 12" 12" C2-3410-ST-469 1-1/2"x1/2" C2-3410-ST-369 1-1/2"x1/2" D 4 F B A 3 2 1 5 6 8 E 7 C REV. APPROVED CHK. DES. REV. DATE REVISION DESCRIPTION CLIENT LEAD ENGINEER SCALE DRAWING NUMBER CHECK DESIGN CHECK DRAWING DESIGNED BY DRAWN BY APPROVAL DATE APPROVAL DATE APPROVED CHK. DES. REV. DATE REVISION DESCRIPTION REFERENCE DRAWING No. 1:100 0 1:200 5m 10m 0 5m 10m 15m 20m 1:500 10m 0 20m 30m 40m 50m 1:1000 0 100m 50m 1:20 0 0.5m 1m 1.5m 2m 0 1:25 0.5m 1m 1.5m 1:33 1/3 2.5m 2m 0 1m 2m 3m 0 1:50 1m 2m 3m 4m 5m CAD FILE NAME: P:0CAD000SPEM** MODEL UPDATED: DWG. FILE UPDATED: MANUAL CHANGES MADE: YES NO YES NO YES NO PROJECT MANAGER ENGINEERING MANAGER AREA PROJECT ENGINEER REFERENCE DRAWINGS SAFETY SHARE: APPROVAL DATE CONTRACT NO. SAFETY SHARE : BA6CVA1.IGR NOTICE: THIS DRAWING HAS NOT BEEN PUBLISHED AND IS THE SOLE PROPERTY OF FLUOR AND IS LENT TO THE BORROWER FOR THEIR CONFIDENTIAL USE ONLY, AND IN CONSIDERATION OF THE LOAN OF THIS DRAWING, THE BORROWER PROMISES AND AGREES TO RETURN IT UPON REQUEST AND AGREES THAT IT WILL NOT BE REPRODUCED, COPIED LENT OR OTHERWISE DISPOSED OF DIRECTLY OR INDIRECTLY, NOR USED FOR ANY OTHER PURPOSE OTHER THAN WHICH IT IS FURNISHED. NONE Apr 2011 240K-C2- (LAUNDER) (LAUNDER) (LAUNDER) (LAUNDER) (LAUNDER) (LAUNDER) PROCESS WATER 1097 3400-25J-006 SCAVENGER TAILING SCAVENGER FLOTATION CELL NO.1 ROW NO.3 1099 3400-25J-006 SCAVENGER TAILING SCAVENGER FLOTATION CELL NO.1 ROW NO.3 1098 3400-25J-006 SCAV. CONCENTRATE SCAV. CONC. LAUNDER ROW NO.3, C2-3410-LA-304 1115 3400-25J-006 ROUGHER CONCENTRATE ROUGHER CONC. LAUNDER ROW NO. 2, C2-3410-LA-303 1116 3400-25J-006 PROCESS WATER 1108 3400-25J-006 SCAVENGER TAILING SCAV. FLOTATION CELL NO.1 ROW NO.4, C2-3410-CF-403 1102 3400-25J-006 SCAVENGER TAILING SCAV. FLOTATION CELL NO.1 ROW NO.4, C2-3410-CF-403 1113 3400-25J-006 SCAV. CONCENTRATE SCAVENGER CONCENTRATE LAUNDER ROW NO. 4 1100 3400-25J-006 ROUGHER CONCENTRATE ROUGHER CONC. LAUNDER ROW NO. 4 C2-3410-LA-403 1109 3400-25J-006 C2-3410-SA-403 PROCESS WATER 1203 3400-25J-011 SCAVENGER TAILING SCAVENGER CELL NO.4 ROW NO.3, C2-3410-CF-306 1204 3400-25J-011 SCAVENGER TAILING SCAVENGER CELL NO.4, ROW NO.4, C2-3410-CF-406 1211 3400-25J-011 SCAVENGER TAILING SCAVENGER CELL NO.4 ROW NO.3, C2-3410-CF-306 1205 3400-25J-011 T1 SCAV. CONCENTRATE SCAVENGER CONCENTRATE LAUNDER, C2-3410-LA-304 1208 3400-25J-011 SCAVENGER TAILING SCAVENGER CELL NO.4, ROW NO.4, C2-3410-CF-406 1200 3400-25J-011 ROUGHER CONCENTRATE ROUGHER CONCENTRATE ROW NO.4 SAMPLER 1209 3400-25J-013 PROCESS WATER C2-3410-SA-303 1201 3400-25J-011 T1 SCAV. CONCENTRATE SCAVENGER CONC. LAUNDER, C2-3410-LA-404 1207 3400-25J-011 T1 T1 SIZE: C2-3410-ST-369 SCAVENGER FLOTATION CONC. DIST. BOX NO.3 ROW NO.3 SIZE: 255 m3 MATERIAL: MOTOR: 300.00 kW C2-3410-CF-304 SCAVENGER FLOTATION CELL NO.2 ROW NO.3 3410-SL-1130-R1B-28"-N 3930-WR-1205-C1A-3"-N 3410-SL-1128-R1A-18"-N 3410-SL-1129-R1B-28"-N 3410-WR-1563-C1A-1-1/2"-N 3410-WR-1590-C1A-2"-N 3930-WR-1204-C1A-3"-N 3930-WR-1204-C1A-3"-N 3410-WR-1594-C1A-3"-N 3410-WR-1591-C1A-1-1/2"-N 3410-WR-1592-C1A-2"-N SIZE: 255 m3 MATERIAL: MOTOR: 300.00 kW C2-3410-CF-404 SCAVENGER FLOTATION CELL NO.2 ROW NO.4 SIZE: 255 m3 MATERIAL: MOTOR: 300.00 kW C2-3410-CF-405 SCAVENGER FLOTATION CELL NO.3 ROW NO.4 3410-WR-1566-C1A-1-1/2"-N 3410-WR-2006-C1A-2"-N 3930-WR-1205-C1A-3"-N SIZE: 255 m3 MATERIAL: MOTOR: 300.00 kW C2-3410-CF-305 SCAVENGER FLOTATION CELL NO.3 ROW NO.3 3410-WR-1564-C1A-2"-N 3410-WR-1593-C1A-1-1/2"-N 3410-WR-1607-C1A-3"-N 3410-WR-1565-C1A-1-1/2"-N 3410-SL-1127-R1A-18"-N SIZE: C2-3410-ST-469 SCAVENGER FLOTATION CONC. DIST. BOX NO.4 ROW NO.4 AG KM LT ISSUED FOR CLIENT REVIEW 22-Dec-11 B RP ISSUED FOR COMBINED REVIEW 29-Jun-11 A 12/22/2011 K. MUNDY A. GUNSON W. BIE L. TAMELIN 12/22/2011 2:45:49 PM WBS: 3400 B PIPING AND INSTRUMENTATION DIAGRAM FLOTATION 3400-25J-007 SCAV ROWS 3 & 4 CELLS 2 & 3 3410 00711 B LV + 3410 00711 A LV + 3410 00731 B LV + 3410 00731 A LV + 3410 00721 B LV + 3410 00721 A LV + 3410 00724 ZS 3410 00725 ZS 3410 00705 ZS 3410 00704 ZS 3410 00704 XA 3410 00705 XA OP/CL OP/CL 3410 00724 XA 3410 00725 XA OP/CL OP/CL MISMATCH MISMATCH MISMATCH MISMATCH V V V V V V V V V V V V V V V V 3410-SL-1131-R1B-28"-N ROUGHER CONCENTRATE ROUGHER CONC. LAUNDER ROW NO. 3, C2-3410-LA-303 1206 3400-25J-013 FI FI FI FI V V V V V V V V V V V V V V V V 3410-SL-1132-R1B-28"-N C2-3410-LA-404 MOLY COLLECTOR INJECTOR, C2-3910-ZM-579 1399 3900-25J-003 SECONDARY COLLECTOR INJECTOR, C2-3910-ZM-626 1799 3900-25J-002 3410-RC-1046-C1D-1"-N 3410-RC-1083-C1D-1"-N 3410-RC-1045-C1D-1"-N 3410-RC-1082-C1D-1"-N SECONDARY COLLECTOR INJECTOR, C2-3910-ZM-624 3797 3900-25J-002 MOLY COLLECTOR INJECTOR, C2-3910-ZM-588 3803 3900-25J-003 FROTHER ALCOHOL INJECTOR, C2-3910-ZM-743 4101 SCAV. CONCENTRATE SCAVENGER FLOTATION CELL NO.1 ROW NO.3 4099 3400-25J-006 3400-SL-1159-R1B-28"-N 3400-RE- -C1O-1"-N FROTHER ALCOHOL INJECTOR, C2-3910-ZM-744 4102 3900-25J-006 3400-RF- -C1D-1"-N SCAV. CONCENTRATE SCAV. FLOTATION CELL NO.1 ROW NO.4, C2-3410-CF-403 4100 3400-25J-006 3410-SL-1160-R1B-28"-N IMAGE IMAGE IMAGE IMAGE
  • 143.
    D 4 F B A 3 2 1 5 68 E 7 C REV. APPROVED CHK. DES. REV. DATE REVISION DESCRIPTION CLIENT LEAD ENGINEER SCALE DRAWING NUMBER CHECK DESIGN CHECK DRAWING DESIGNED BY DRAWN BY APPROVAL DATE APPROVAL DATE APPROVED CHK. DES. REV. DATE REVISION DESCRIPTION REFERENCE DRAWING No. 1:100 0 1:200 5m 10m 0 5m 10m 15m 20m 1:500 10m 0 20m 30m 40m 50m 1:1000 0 100m 50m 1:20 0 0.5m 1m 1.5m 2m 0 1:25 0.5m 1m 1.5m 1:33 1/3 2.5m 2m 0 1m 2m 3m 0 1:50 1m 2m 3m 4m 5m CAD FILE NAME: P:0CAD000SPEM** MODEL UPDATED: DWG. FILE UPDATED: MANUAL CHANGES MADE: YES NO YES NO YES NO PROJECT MANAGER ENGINEERING MANAGER AREA PROJECT ENGINEER REFERENCE DRAWINGS SAFETY SHARE: APPROVAL DATE CONTRACT NO. SAFETY SHARE : BA6CVA1.IGR NOTICE: THIS DRAWING HAS NOT BEEN PUBLISHED AND IS THE SOLE PROPERTY OF FLUOR AND IS LENT TO THE BORROWER FOR THEIR CONFIDENTIAL USE ONLY, AND IN CONSIDERATION OF THE LOAN OF THIS DRAWING, THE BORROWER PROMISES AND AGREES TO RETURN IT UPON REQUEST AND AGREES THAT IT WILL NOT BE REPRODUCED, COPIED LENT OR OTHERWISE DISPOSED OF DIRECTLY OR INDIRECTLY, NOR USED FOR ANY OTHER PURPOSE OTHER THAN WHICH IT IS FURNISHED. NONE Apr 2011 240K-C2- VENDOR VENDOR 3410 01191 II 3410 01191 XA FAULT 3410 01122 LIT 3410 01113 AT 3410 01111 LIC 3410 01111 LIT 3410 01123 AT 3410 01122 LI 3410 01123 AI 3410 01103 AI 3410 01103 AT 3410 01132 LIT 3410 01182 II 3410 01131 LIC 3410 01192 II 3410 01102 LI 3410 01101 LIC 3410 01113 AI 3410 01101 LIT 3410 01132 LE 3410 01182 XA FAULT 3410 01102 LIT 3410 01112 LIT 3410 01112 LI 3410 01133 AT 3410 01181 XA FAULT 3410 01121 LIT 3410 01182 HS 3410 01181 II 3410 01121 LIC 3410 01133 AI 3410 01181 HS 3410 01131 LE 3410 01122 LE 3410 01102 LE 3410 01132 LI 3410 01101 LE 3410 01121 LE 3410 01191 HS 3410 01112 LE 3410 01111 LE 3410 01192 XA FAULT 3410 01192 HS 3410 01131 LIT MIN. MIN. MIN. MIN. TO ATM TO ATM TO ATM TO ATM AIR INTAKE MIN. J/SP J/SP MIN. AIR INTAKE MIN. J/SP AIR INTAKE J/SP VENDOR VENDOR VENDOR VENDOR MIN. AIR INTAKE VENDOR VENDOR VENDOR VENDOR VENDOR (LAUNDER) VENDOR (LAUNDER) (LAUNDER) (LAUNDER) VENDOR VENDOR VENDOR VENDOR VENDOR VENDOR VENDOR VENDOR 28"x18" 1-1/2"x1/2" 1-1/2"x1/2" C2-3410-CF-307 C2-3410-CF-306 C2-3410-CF-406 C2-3410-CF-407 1-1/2"x1/2" 1-1/2"x1/2" 28"x18" 28"x18" 12" 12" 12" 12" 28"x18" 3410 01131 A LV + 3410 01131 B LV + 3410 01111 B LV + 3410 01111 A LV + 3410 01101 A LV + 3410 01101 B LV + 3410 01121 A LV + 3410 01121 B LV + PROCESS WATER 1203 3400-25J-007 SCAVENGER TAILING SCAV. FLOTATION CELL NO.3 ROW NO.3, C2-3410-CF-305 1205 3400-25J-007 SCAVENGER TAILING SCAV. FLOTATION CELL NO.3 ROW NO.3, C2-3410-CF-305 1204 3400-25J-007 SCAV. CONCENTRATE SCAV. CONC. LAUNDER, C2-3410-LA-304 1208 3400-25J-007 PROCESS WATER 1201 3400-25J-007 SCAVENGER TAILING SCAV. FLOTATION CELL NO.3 ROW NO.4, C2-3410-CF-405 1211 3400-25J-007 SCAVENGER TAILING SCAV. FLOTATION CELL NO.3 ROW NO.4, C2-3410-CF-405 1200 3400-25J-007 SCAV. CONCENTRATE SCAV. CONC. LAUNDER, C2-3410-LA-404 1207 3400-25J-007 SCAVENGER TAILING SCAV. CELL NO.6 ROW NO.3, C2-3410-CF-308 1169 3400-25J-012 T1 SCAVENGER TAILING SCAV. CELL NO.6 ROW NO.4, C2-3410-CF-408 1178 3400-25J-012 T1 SCAVENGER TAILING SCAV. CELL NO.6 ROW NO.3, C2-3410-CF-308 1170 3400-25J-012 SCAVENGER TAILING SCAV. CELL NO.6 ROW NO.4, C2-3410-CF-408 1179 3400-25J-012 SCAV. CONCENTRATE SCAV. CONC. LAUNDER ROW NO.3, C2-3410-LA-304 1181 3400-25J-012 T1 T1 PROCESS WATER 1176 3400-25J-012 PROCESS WATER 1180 3400-25J-012 SCAV. CONCENTRATE SCAV. CONC. LAUNDER ROW NO.4, C2-3410-LA-404 1177 3400-25J-012 3930-WR-1205-C1A-3"-N 3410-SL-1135-R1B-28"-N 3410-WR-1569-C1A-1-1/2"-N 3410-SL-1136-R1B-28"-N 3410-WR-1597-C1A-1-1/2"-N 3410-WR-1573-C1A-1-1/2"-N 3410-WR-1570-C1A-1-1/2"-N 3930-WR-1204-C1A-3"-N SIZE: 255 m3 MATERIAL: MOTOR: 300.00 kW C2-3410-CF-306 SCAVENGER FLOTATION CELL NO.4 ROW NO.3 3410-WR-1572-C1A-2"-N 3410-WR-1568-C1A-2"-N 3410-WR-1595-C1A-2"-N 3410-SL-1134-R1B-28"-N 3410-WR-1598-C1A-2"-N 3410-WR-1599-C1A-1-1/2"-N 3410-WR-1571-C1A-1-1/2"-N SIZE: 255 m3 MATERIAL: MOTOR: 300.00 kW C2-3410-CF-307 SCAVENGER FLOTATION CELL NO.5 ROW NO.3 SIZE: 255 m3 MATERIAL: MOTOR: 300.00 kW C2-3410-CF-407 SCAVENGER FLOTATION CELL NO.5 ROW NO.4 3410-WR-1596-C1A-1-1/2"-N 3930-WR-1205-C1A-3"-N SIZE: 255 m3 MATERIAL: MOTOR: 300.00 kW C2-3410-CF-406 SCAVENGER FLOTATION CELL NO.4 ROW NO.4 3410-WR-1567-C1A-1-1/2"-N 3410-SL-1133-R1B-28"-N 3410-WR-1608-C1A-1-1/2"-N AG KM LT ISSUED FOR CLIENT REVIEW 22-Dec-11 B RP ISSUED FOR COMBINED REVIEW 29-Jun-11 A 12/22/2011 K. MUNDY A. GUNSON W. BIE L. TAMELIN 12/21/2011 5:38:03 PM WBS: 3400 B PIPING AND INSTRUMENTATION DIAGRAM FLOTATION 3400-25J-011 SCAV ROWS 3 & 4, CELLS 4 & 5 V V V V V V V V V V V V V V V V V V V V V V V V IMAGE IMAGE IMAGE IMAGE
  • 144.
    D 4 F B A 3 2 1 5 68 E 7 C REV. APPROVED CHK. DES. REV. DATE REVISION DESCRIPTION CLIENT LEAD ENGINEER SCALE DRAWING NUMBER CHECK DESIGN CHECK DRAWING DESIGNED BY DRAWN BY APPROVAL DATE APPROVAL DATE APPROVED CHK. DES. REV. DATE REVISION DESCRIPTION REFERENCE DRAWING No. 1:100 0 1:200 5m 10m 0 5m 10m 15m 20m 1:500 10m 0 20m 30m 40m 50m 1:1000 0 100m 50m 1:20 0 0.5m 1m 1.5m 2m 0 1:25 0.5m 1m 1.5m 1:33 1/3 2.5m 2m 0 1m 2m 3m 0 1:50 1m 2m 3m 4m 5m CAD FILE NAME: P:0CAD000SPEM** MODEL UPDATED: DWG. FILE UPDATED: MANUAL CHANGES MADE: YES NO YES NO YES NO PROJECT MANAGER ENGINEERING MANAGER AREA PROJECT ENGINEER REFERENCE DRAWINGS SAFETY SHARE: APPROVAL DATE CONTRACT NO. SAFETY SHARE : BA6CVA1.IGR NOTICE: THIS DRAWING HAS NOT BEEN PUBLISHED AND IS THE SOLE PROPERTY OF FLUOR AND IS LENT TO THE BORROWER FOR THEIR CONFIDENTIAL USE ONLY, AND IN CONSIDERATION OF THE LOAN OF THIS DRAWING, THE BORROWER PROMISES AND AGREES TO RETURN IT UPON REQUEST AND AGREES THAT IT WILL NOT BE REPRODUCED, COPIED LENT OR OTHERWISE DISPOSED OF DIRECTLY OR INDIRECTLY, NOR USED FOR ANY OTHER PURPOSE OTHER THAN WHICH IT IS FURNISHED. NONE Apr 2011 240K-C2- 3410 01212 LI 3410 01211 LE 3410 01212 LIT 3410 01212 LE 3410 01211 LIT 3410 01282 XA FAULT 3410 01211 LIC 3410 01232 LE 3410 01213 AT 3410 01232 LI 3410 01213 AI 3410 01231 LE 3410 01292 II 3410 01233 AI 3410 01231 LIC 3410 01282 II 3410 01232 LIT 3410 01282 HS 3410 01231 LIT 3410 01292 HS 3410 01233 AT 3410 01292 XA FAULT TO ATM MIN. TO ATM MIN. MIN. AIR INTAKE VENDOR MIN. AIR INTAKE J/SP J/SP VENDOR VENDOR VENDOR VENDOR VENDOR VENDOR VENDOR (LAUNDER) 3410 01231 LV + C2-3410-CF-308 C2-3410-CF-408 3410 01211 LV + C2-3410-SA-402 C2-3410-AZ-403 C2-3410-SA-302 C2-3410-AZ-303 12" 12" 28"x18" 1-1/2"x1/2" 28"x18" 1-1/2"x1/2" (LAUNDER) (LAUNDER) (LAUNDER) PROCESS WATER 1176 3400-25J-011 SCAVENGER TAILING SCAV. FLOTATION CELL NO.5 ROW NO.3, C2-3410-CF-307 1170 3400-25J-011 SCAVENGER TAILING SCAV. FLOTATION CELL NO.5 ROW NO.3, C2-3410-CF-307 1169 3400-25J-011 SCAV. CONCENTRATE SCAV. CONC. LAUNDER ROW NO.3, C2-3410-LA-304 1181 3400-25J-011 PROCESS WATER 1180 3400-25J-011 SCAVENGER TAILING SCAV. FLOTATION CELL NO.5 ROW NO.4, C2-3410-CF-407 1179 3400-25J-011 SCAVENGER TAILING SCAV. FLOTATION CELL NO.5 ROW NO.4, C2-3410-CF-407 1178 3400-25J-011 SCAV. CONCENTRATE SCAV. CONC. LAUNDER ROW NO.4, C2-3410-LA-404 1177 3400-25J-011 SCAV. CONCENTRATE SCAV. ROW NO.3 CONC. PRIM. SAMLER, C2-3410-SA-304 1400 3400-25J-013 SCAV. CONCENTRATE SCAV. ROW NO.4 CONC. PRIM. SAMLER, C2-3410-SA-404 1402 3400-25J-013 T1 SCAVENGER TAILING PLANT TAILING COLLECTION LAUNDER, C2-3710-LA-001 1189 3700-25J-001 T1 SCAVENGER TAILING PLANT TAILING COLLECTION LAUNDER, C2-3710-LA-001 1190 3700-25J-001 SIZE: 255 m3 MATERIAL: MOTOR: 300.00 kW C2-3410-CF-308 SCAVENGER FLOTATION CELL NO.6 ROW NO.3 3410-WR-1577-C1A-1-1/2"-N 3410-WR-1603-C1A-2"-N 3410-WR-1609-C1A-1-1/2"-N SIZE: C2-3410-AZ-303 SCAVENGER TAILING ROW NO.3 ANALYZER 3410-WR-1604-C1A-1-1/2"-N 3410-SL-1139-R1B-28"-N 3410-WR-1579-C1A-2"-N SIZE: C2-3410-SA-302 SCAVENGER TAILING ROW NO.3 SAMPLER 3410-WR-1580-C1A-1-1/2"-N 3410-WR-1581-C1A-1-1/2"-N 3930-WR-1204-C1A-3"-N SIZE: C2-3410-AZ-403 SCAVENGER TAILING ROW NO.4 ANALYZER SIZE: 255 m3 MATERIAL: MOTOR: 300.00 kW C2-3410-CF-408 SCAVENGER FLOTATION CELL NO.6 ROW NO.4 3930-WR-1204-C1A-3"-N SIZE: C2-3410-SA-402 SCAVENGER TAILING ROW NO.4 SAMPLER 3930-WR-1205-C1A-3"-N 3410-WR-1578-C1A-1-1/2"-N 3410-WR-1602-C1A-1-1/2"-N 3410-WR-1582-C1A-1-1/2"-N 3410-SL-1140-R1B-28"-N AG KM LT ISSUED FOR CLIENT REVIEW 22-Dec-11 B RP ISSUED FOR COMBINED REVIEW 29-Jun-11 A 12/22/2011 K. MUNDY A. GUNSON W. BIE L. TAMELIN 12/21/2011 5:39:04 PM WBS: 3400 B PIPING AND INSTRUMENTATION DIAGRAM FLOTATION 3400-25J-012 SCAV ROWS 3 & 4, CELL 6 AND TAIL SAMPLING 3930-WR-1205-C1A-3"-N V V 3410-SL-1664-R1B-48"-N 3410-SL-1663-R1B-48"-N V V V V V V V V IMAGE IMAGE PROCESS WATER 2815 3400-25J-013
  • 145.
    D 4 F B A 3 2 1 5 68 E 7 C REV. APPROVED CHK. DES. REV. DATE REVISION DESCRIPTION CLIENT LEAD ENGINEER SCALE DRAWING NUMBER CHECK DESIGN CHECK DRAWING DESIGNED BY DRAWN BY APPROVAL DATE APPROVAL DATE APPROVED CHK. DES. REV. DATE REVISION DESCRIPTION REFERENCE DRAWING No. 1:100 0 1:200 5m 10m 0 5m 10m 15m 20m 1:500 10m 0 20m 30m 40m 50m 1:1000 0 100m 50m 1:20 0 0.5m 1m 1.5m 2m 0 1:25 0.5m 1m 1.5m 1:33 1/3 2.5m 2m 0 1m 2m 3m 0 1:50 1m 2m 3m 4m 5m CAD FILE NAME: P:0CAD000SPEM** MODEL UPDATED: DWG. FILE UPDATED: MANUAL CHANGES MADE: YES NO YES NO YES NO PROJECT MANAGER ENGINEERING MANAGER AREA PROJECT ENGINEER REFERENCE DRAWINGS SAFETY SHARE: APPROVAL DATE CONTRACT NO. SAFETY SHARE : BA6CVA1.IGR NOTICE: THIS DRAWING HAS NOT BEEN PUBLISHED AND IS THE SOLE PROPERTY OF FLUOR AND IS LENT TO THE BORROWER FOR THEIR CONFIDENTIAL USE ONLY, AND IN CONSIDERATION OF THE LOAN OF THIS DRAWING, THE BORROWER PROMISES AND AGREES TO RETURN IT UPON REQUEST AND AGREES THAT IT WILL NOT BE REPRODUCED, COPIED LENT OR OTHERWISE DISPOSED OF DIRECTLY OR INDIRECTLY, NOR USED FOR ANY OTHER PURPOSE OTHER THAN WHICH IT IS FURNISHED. NONE Apr 2011 240K-C2- SLOPE C2-3410-SA-303 1-1/2"x1" 3410-SL-1142-R1A-18"-N 18"x16" FLUOR SIZE: MATERIAL: CAPACITY: TRIM: C2-3410-SA-304 SCAVENGER CONCENTRATE ROW NO 3 SAMPLER NOTE 1 SIZE: MATERIAL: CAPACITY: TRIM: C2-3410-SA-303 ROUGHER CONCENTRATE ROW NO.3 SAMPLER NOTE 1 SLOPE C2-3410-AZ-304 SIZE: C2-3410-AZ-304 ROUGHER/SCAVENGER CONCENTRATE ROWS NO.3 & NO.4 INSTREAM ANALYZER V 2"x1/2" V 1-1/2"x1" V V 3410-SL-1141-R1A-18"-N V V V V V 3410-SL-1143-R1A-4"-N 3410-SL-1144-R1A-4"-N 18"x16" 3410-SL-1153-R1A-4"-N SIZE: MATERIAL: CAPACITY: TRIM: C2-3410-SA-404 SCAVENGER CONCENTRATE ROW NO.4 SAMPLER 1-1/2"x1" 1-1/2"x1" VENDOR 3410-SL-1154-R1A-4"-N SLOPE 3410-WR-1204-C1A-3"-N 18"x16" 3410-SL-1128-R1A-18"-N SIZE: MATERIAL: CAPACITY: TRIM: C2-3410-SA-403 ROUGHER CONCENTRATE ROW NO.4 SAMPLER 3410-WF-1169-C1A-2"-N NOTE 1 NOTES: 1. PROVISION FOR SHIFT SAMPLE C2-3410-SA-404 SLOPE C2-3410-SA-304 NOTE 1 C2-3410-SA-403 18"x16" 3410-SL-1127-R1A-18"-N SCAV. CONCENTRATE COMBINED SCAVENGER COLLECTION LAUNDER (PIPE) 1445 3400-25J-005 SCAV. CONCENTRATE COMBINED SCAVENGER COLLECTION LAUNDER (PIPE) 1444 3400-25J-005 ROUGHER CONCENTRATE COMBINED ROUGHER COLLECTION LAUNDER (PIPE) 1435 3400-25J-005 ROUGHER CONCENTRATE COMBINED ROUGHER COLLECTION LAUNDER (PIPE) 1434 3400-25J-005 SCAV. CONCENTRATE COMBINED SCAVENGER COLLECTION LAUNDER (PIPE) 1438 3400-25J-005 SCAV. CONCENTRATE COMBINED SCAVENGER COLLECTION LAUNDER (PIPE) 1439 3400-25J-005 ROUGHER CONCENTRATE COMBINED ROUGHER COLLECTION LAUNDER (PIPE) 1452 3400-25J-005 ROUGHER CONCENTRATE COMBINED ROUGHER COLLECTION LAUNDER (PIPE) 1453 3400-25J-005 SCAV. CONCENTRATE SCAVENGER CONC. LAUNDER ROW NO. 3, C2-3410-LA-304 1400 3400-25J-012 SCAV. CONCENTRATE SCAVENGER CONC. LAUNDER ROW NO. 4, C2-3410-LA-404 1402 3400-25J-012 FRESH WATER 1448 5100-25J-014 3410-SL-1152-R1A-18"-N 3410-SL-1146-R1A-12"-N 3410-SL-1147-R1A-4"-N 3410-SL-1148-R1A-4"-N 3410-SL-1149-R1A-4"-N 3410-SL-1150-R1A-4"-N 3410-SL-1151-R1A-18"-N 6"x4" 6"x4" 3410-SL-1145-R1A-12"-N AI AG KM LT ISSUED FOR CLIENT REVIEW 22-Dec-11 B RP ISSUED FOR COMBINED REVIEW 29-Jun-11 A 12/22/2011 K. MUNDY A. GUNSON W. BIE L. TAMELIN 12/22/2011 2:50:03 PM WBS: 3400 B PIPING AND INSTRUMENTATION DIAGRAM FLOTATION 3400-25J-013 CONCENTRATE SAMPLING ROWS 3 & 4 ROUGHER CONCENTRATE ROUGHER CONC. LAUNDER ROW NO. 3, C2-3410-LA-303 2172 3400-25J-007 ROUGHER CONCENTRATE ROUGHER CONC. LAUNDER ROW NO. 4, C2-3410-LA-403 2173 3400-25J-007 3410-WR-1611-C1A-1-1/2"-N 3410-WR-1613-C1A-1-1/2"-N 3410-WR-1614-C1A-1-1/2"-N 3410-WR-1612-C1A-1-1/2"-N PROCESS WATER 2815 3400-25J-012
  • 146.
    T1 T1 T1 T1 T1 T1 3410 01441 LE 3410 01492 HS 3410 01443 AI 3410 01443 AT 3410 01433 AT 3410 01433 AI 3410 01441 LIC 3410 01441 LIT 3410 01492 II 3410 01492 XA FAULT 3410 01442 LIT 3410 01442 LI 3410 01442 LE 3410 01482 HS 3410 01411 LE 3410 01411 LIC 3410 01411 LIT 3410 01482 II 3410 01482 XA FAULT 3410 01412 LIT 3410 01412 LI 3410 01412 LE 3410 01413 AI 3410 01413 AT 3410 01423 AT 3410 01423 AI 3410 01453 AI 3410 01453 AT 3410 01491 HS 3410 01483 HS 3410 01451 LIT 3410 01432 LI 3410 01481 II 3410 01491 II 3410 01421 LIT 3410 01481 XAFAULT 3410 01432 LE 3410 01422 LIT 3410 01403 AI 3410 01421 LE 3410 01422 LI 3410 01491 XA FAULT 3410 01452 LI 3410 01431 LIC 3410 01432 LIT 3410 01451 LIC 3410 01401 LIT 3410 01452 LE 3410 01483 II 3410 01402 LE 3410 01403 AT 3410 01451 LE 3410 01493 XA FAULT 3410 01431 LE 3410 01481 HS 3410 01401 LE 3410 01422 LE 3410 01493 II 3410 01493 HS 3410 01421 LIC 3410 01402 LIT 3410 01483 XA FAULT 3410 01401 LIC 3410 01402 LI 3410 01452 LIT PRIMARY CYCLONE O/F PARTICLE SIZE ANALYZER, C2-3330-AZ-501 1134 3300-25J-045 FROTHER ALCOHOL INJECTOR, C2-3910-ZM-685 1124 3900-25J-006 PROCESS WATER 1117 3400-25J-015 SCAVENGER TAILING SCAVENGER CELL NO.2 ROW NO.5, C2-3410-CF-504 1120 3400-25J-015 VENDOR MILK OF LIME LIME DISTRIBUTION PUMPS C2-3920-PP-093/094 1406 3900-25J-012 SCAVENGER TAILING SCAVENGER CELL NO.2 ROW NO.5, C2-3410-CF-504 1130 3400-25J-015 VENDOR PRIMARY CYCLONE O/F PARTICLE SIZE ANALYZER, C2-3330-AZ-501 1136 3300-25J-045 MILK OF LIME LIME DISTRIBUTION PUMPS C2-3920-PP-093/094 1405 3900-25J-012 FROTHER ALCOHOL INJECTOR, C2-3910-ZM-686 1132 3900-25J-006 TEST REAGENT INJECTOR, C2-3910-ZM-702 1129 3900-25J-004 PRIMARY CYCLONE O/F BALL MILL NO.5 O/F SAMPLER, C2-3330-SA-501 1123 3300-25J-045 PRIMARY CYCLONE O/F BALL MILL NO. 6 O/F SAMPLER, C2-3330-SA-601 1133 3300-25J-045 SCAV. CONCENTRATE SCAVENGER CONCENTRATE LAUNDER, C2-3410-LA-504 1131 3400-25J-015 PROCESS WATER 1119 3400-25J-015 PH CONTROLLER 1403 3400-25J-042 ROUGHER CONCENTRATE ROUGHER CONCENTRATE LAUNDER, C2-3410-LA-503 1118 3400-25J-015 SCAVENGER TAILING SCAVENGER CELL NO.2 ROW NO.6, C2-3410-CF-604 1122 3400-25J-015 VENDOR TEST REAGENT INJECTOR, C2-3910-ZM-701 1125 3900-25J-004 SCAVENGER TAILING SCAVENGER CELL NO.2 ROW NO.6, C2-3410-CF-604 1127 3400-25J-015 VENDOR PH CONTROLLER 1404 3400-25J-042 ROUGHER CONCENTRATE ROUGHER CONCENTRATE LAUNDER,C2-3410-LA-603 1135 3400-25J-015 SCAV. CONCENTRATE SCAVENGER CONCENTRATE LAUNDER, C2-3410-LA-604 1128 3400-25J-015 VENDOR VENDOR AIR INTAKE J/SP VENDOR VENDOR AIR INTAKE J/SP AIR INTAKE LAUNDER VENDOR AIR INTAKE LAUNDER VENDOR VENDOR VENDOR J/SP J/SP J/SP VENDOR VENDOR VENDOR VENDOR AIR INTAKE AIR INTAKE J/SP 3410 01425 XV + 3430 04201 D AV + 3410 01451 A LV + C2-3410-LA-604 3410 01401 A LV + 3410 01424 XV + 1-1/2"x1/2" 1-1/2"x1/2" 3410 01431 A LV + 3"x1-1/2" C2-3410-ST-668 1-1/2"x1/2" C2-3410-CF-503 28"x18" C2-3410-CF-502 3430 04201 E AV + C2-3410-LA-504 C2-3410-LA-503 C2-3410-CF-603 C2-3410-CF-601 1-1/2"x1/2" C2-3410-LA-603 12" SIZE: 255 m3 MOTOR: 300.00 kW C2-3410-CF-502 ROUGHER FLOTATION CELL NO.2 ROW NO.5 C2-3410-CF-602 28"x18" SIZE: 255 m3 MOTOR: 300.00 kW C2-3410-CF-602 ROUGHER FLOTATION CELL NO.2 ROW NO.6 3"x1-1/2" 3410 01421 A LV + 3410 01451 B LV + 3410 01421 B LV + 3410 01401 B LV + C2-3410-CF-501 3410 01431 B LV + AG KM LT ISSUED FOR CLIENT REVIEW 22-Dec-11 B RP ISSUED FOR COMBINED REVIEW 29-Jun-11 A 12/22/2011 K. MUNDY A. GUNSON W. BIE L. TAMELIN 12/22/2011 2:50:53 PM WBS: 3400 B PIPING AND INSTRUMENTATION DIAGRAM FLOTATION 3400-25J-014 ROUGHER & SCAV ROWS 5 & 6 SIZE: C2-3410-LA-603 ROUGHER CONCENTRATE LAUNDER ROW NO.6 3410-WR-1645-C1A-1-1/2"-N 3410-SL-1158-R1A-18"-N 3930-WR-1202-C1A-3"-N SIZE: 255 m3 MATERIAL: MOTOR: 300.00 kW C2-3410-CF-503 SCAVENGER FLOTATION CELL NO.1 ROW NO.5 3410-WR-1646-C1A-1-1/2"-N 3410-WR-1665-C1A-1-1/2"-N 3410-WR-1619-C1A-2"-N 3410-WR-1643-C1A-1-1/2"-N 3410-WR-1648-C1A-2"-N 3410-WR-1620-C1A-1-1/2"-N SIZE: 250 m3 MATERIAL: MOTOR: 300.00 kW C2-3410-CF-603 SCAVENGER FLOTATION CELL NO.1 ROW NO.6 3410-WR-1615-C1A-2"-N 3400-WR-1646-C1A-1-1/2"-N 3410-SL-1156-R1B-28"-N SIZE: C2-3410-LA-504 SCAVENGER CONCENTRATE LAUNDER ROW NO.5 SIZE: C2-3410-LA-503 ROUGHER CONCENTRATE LAUNDER ROW NO.5 SIZE: C2-3410-LA-604 SCAVENGER CONCENTRATE LAUNDER ROW NO.6 3410-SL-1157-R1A-18"-N 3410-WR-1644-C1A-2"-N SIZE: 255 m3 MATERIAL: MOTOR: 300.00 kW C2-3410-CF-601 ROUGHER FLOTATION CELL NO.1 ROW NO.6 SIZE: C2-3410-ST-668 ROUGHER FLOTATION CONC. DIST. BOX NO.6 ROW NO.6 3410-WR-1617-C1A-1-1/2"-N 3410-WR-1649-C1A-1-1/2"-N 3410-SL-1155-R1B-28"-N 3930-WR-1203-C1A-3"-N 3410-WR-1617-C1A-1-1/2"-N SIZE: 255 m3 MATERIAL: MOTOR: 300.00 kW C2-3410-CF-501 ROUGHER FLOTATION CELL NO.1 ROW NO.5 3410 01441 A LV + 3410 01441 B LV + 1-1/2"x1/2" 3410-WR-1635-C1A-1-1/2"-N 3410-WR-1634-C1A-2"-N 3410 01411 A LV + 3410 01411 B LV + 1-1/2"x1/2" C2-3410-ST-568 3410 01404 XV + 3410 01405 XV + 12" 12" 12" 12" 3410-WR-1616-C1A-1-1/2"-N 3410-WR-1661-C1A-1-1/2"-N 3410-WR-1660-C1A-2"-N D 4 F B A 3 2 1 5 6 8 E 7 C REV. APPROVED CHK. DES. REV. DATE REVISION DESCRIPTION CLIENT LEAD ENGINEER SCALE DRAWING NUMBER CHECK DESIGN CHECK DRAWING DESIGNED BY DRAWN BY APPROVAL DATE APPROVAL DATE APPROVED CHK. DES. REV. DATE REVISION DESCRIPTION REFERENCE DRAWING No. 1:100 0 1:200 5m 10m 0 5m 10m 15m 20m 1:500 10m 0 20m 30m 40m 50m 1:1000 0 100m 50m 1:20 0 0.5m 1m 1.5m 2m 0 1:25 0.5m 1m 1.5m 1:33 1/3 2.5m 2m 0 1m 2m 3m 0 1:50 1m 2m 3m 4m 5m CAD FILE NAME: P:0CAD000SPEM** MODEL UPDATED: DWG. FILE UPDATED: MANUAL CHANGES MADE: YES NO YES NO YES NO PROJECT MANAGER ENGINEERING MANAGER AREA PROJECT ENGINEER REFERENCE DRAWINGS SAFETY SHARE: APPROVAL DATE CONTRACT NO. SAFETY SHARE : BA6CVA1.IGR NOTICE: THIS DRAWING HAS NOT BEEN PUBLISHED AND IS THE SOLE PROPERTY OF FLUOR AND IS LENT TO THE BORROWER FOR THEIR CONFIDENTIAL USE ONLY, AND IN CONSIDERATION OF THE LOAN OF THIS DRAWING, THE BORROWER PROMISES AND AGREES TO RETURN IT UPON REQUEST AND AGREES THAT IT WILL NOT BE REPRODUCED, COPIED LENT OR OTHERWISE DISPOSED OF DIRECTLY OR INDIRECTLY, NOR USED FOR ANY OTHER PURPOSE OTHER THAN WHICH IT IS FURNISHED. NONE Apr 2011 240K-C2- MIN MIN MIN MIN MIN MIN MIN MIN V FC FC V V V V V V V V V V V V V V V V V V V FI FI 3330-SL-1079-C1B-4"-N 3330-SL-1085-RIB-48"-N 3410-RF-1036-C1D-1"-N 3410-RC-1129-C1D-1"-N 3930-WR-1202-C1A-3"-N 3410-RL-1014-C1B-1-1/2"-N 3410-RL-1015-C1B-1-1/2"-N 3330-SL-1080-C1B-4"-N 3330-SL-1081-RIB-48"-N 3410-RF-1035-C1D-1"-N 3410-RC-1128-C1D-1"-N 3930-WR-1203-C1A-3"-N 3400 01431 LIT 3410-SL-1800-R1B-28"-N 3410-SL-1170-R1B-28"-N 3410-SL-1799-R1B-28"-N 3410-SL-1169-R1B-28"-N 3410 01405 ZS 3410 01405 XS 3410 01404 ZS 3410 01404 XS 3410 01425 ZS 3410 01425 XS 3410 01424 ZS 3410 01424 XS V V V V V V V V V V V V V V V V V V V V PROCESS WATER 2892 3900-25J-015 PROCESS WATER 2893 3900-25J-015 SIZE: C2-3410-ST-568 ROUGHER FLOTATION CONC. DIST. BOX NO.5 ROW NO.5 SCAV. CONCENTRATE SCAV. CONC. DISTRIBUTION BOX NO.5, C2-3410-ST-569 4096 3400-25J-015 SCAV. CONCENTRATE SCAV. CONC. DISTRIBUTION BOX NO.6, C2-3410-ST-569 4097 3400-25J-015 IMAGE IMAGE IMAGE IMAGE IMAGE IMAGE
  • 147.
    D 4 F B A 3 2 1 5 68 E 7 C REV. APPROVED CHK. DES. REV. DATE REVISION DESCRIPTION CLIENT LEAD ENGINEER SCALE DRAWING NUMBER CHECK DESIGN CHECK DRAWING DESIGNED BY DRAWN BY APPROVAL DATE APPROVAL DATE APPROVED CHK. DES. REV. DATE REVISION DESCRIPTION REFERENCE DRAWING No. 1:100 0 1:200 5m 10m 0 5m 10m 15m 20m 1:500 10m 0 20m 30m 40m 50m 1:1000 0 100m 50m 1:20 0 0.5m 1m 1.5m 2m 0 1:25 0.5m 1m 1.5m 1:33 1/3 2.5m 2m 0 1m 2m 3m 0 1:50 1m 2m 3m 4m 5m CAD FILE NAME: P:0CAD000SPEM** MODEL UPDATED: DWG. FILE UPDATED: MANUAL CHANGES MADE: YES NO YES NO YES NO PROJECT MANAGER ENGINEERING MANAGER AREA PROJECT ENGINEER REFERENCE DRAWINGS SAFETY SHARE: APPROVAL DATE CONTRACT NO. SAFETY SHARE : BA6CVA1.IGR NOTICE: THIS DRAWING HAS NOT BEEN PUBLISHED AND IS THE SOLE PROPERTY OF FLUOR AND IS LENT TO THE BORROWER FOR THEIR CONFIDENTIAL USE ONLY, AND IN CONSIDERATION OF THE LOAN OF THIS DRAWING, THE BORROWER PROMISES AND AGREES TO RETURN IT UPON REQUEST AND AGREES THAT IT WILL NOT BE REPRODUCED, COPIED LENT OR OTHERWISE DISPOSED OF DIRECTLY OR INDIRECTLY, NOR USED FOR ANY OTHER PURPOSE OTHER THAN WHICH IT IS FURNISHED. NONE Apr 2011 240K-C2- 3410 01511 LIT 3410 01513 AI 3410 01523 AT 3410 01522 LI 3410 01513 AT 3410 01523 AI 3410 01532 LIT 3410 01531 LIC 3410 01503 AI 3410 01503 AT 3410 01582 II 3410 01502 LI 3410 01582 XA FAULT 3410 01502 LIT 3410 01592 II 3410 01512 LIT 3410 01512 LI 3410 01581 XA FAULT 3410 01521 LIT 3410 01581 II 3410 01521 LIC 3410 01533 AT 3410 01581 HS 3410 01582 HS 3410 01531 LE 3410 01502 LE 3410 01532 LI 3410 01591 XA FAULT 3410 01533 AI 3410 01501 LE 3410 01501 LIC 3410 01522 LE 3410 01501 LIT 3410 01592 XA FAULT 3410 01521 LE 3410 01532 LE 3410 01512 LE 3410 01531 LIT 3410 01591 HS 3410 01522 LIT 3410 01511 LE 3410 01592 HS 3410 01591 II 3410 01511 LIC VENDOR VENDOR VENDOR VENDOR VENDOR AIR INTAKE AIR INTAKE J/SP J/SP AIR INTAKE J/SP AIR INTAKE J/SP VENDOR VENDOR VENDOR VENDOR VENDOR VENDOR VENDOR VENDOR VENDOR VENDOR VENDOR VENDOR VENDOR VENDOR VENDOR (LAUNDER) (LAUNDER) C2-3410-CF-604 C2-3410-CF-605 C2-3410-ST-569 C2-3410-ST-669 3410 01531 B LV + 3410 01511 A LV + 3410 01511 B LV + 3410 01521 A LV + 3410 01501 B LV + 3410 01501 A LV + 3410 01525 XV + 3410 01521 B LV + 3410 01531 A LV + C2-3410-CF-505 C2-3410-CF-504 1-1/2"x1/2" 1-1/2"x1/2" 1-1/2"x1/2" BA-2000 1-1/2"x1/2" 12" 12" 12" 12" 3410 01505 XV + (LAUNDER) (LAUNDER) (LAUNDER) (LAUNDER) (LAUNDER) PROCESS WATER 1119 3400-25J-014 SCAVENGER TAILING SCAVENGER FLOTATION CELL NO.1 ROW NO.5, 1120 3400-25J-014 SCAVENGER TAILING SCAVENGER FLOTATION CELL NO.1, ROW NO.5, 1130 3400-25J-014 SCAV. CONCENTRATE SCAV. CONC. LAUNDER ROW NO.5, C2-3410-LA-504 1131 3400-25J-014 ROUGHER CONCENTRATE ROUGHER CONC. LAUNDER ROW NO.5, C2-3410-LA-503 1118 3400-25J-014 PROCESS WATER 1117 3400-25J-014 SCAVENGER TAILING SCAVENGER FLOTATION CELL NO.1, ROW NO.6, 1122 3400-25J-014 SCAVENGER TAILING SCAVENGER FLOTATION CELL NO.1, ROW NO.6, 1127 3400-25J-014 SCAV. CONCENTRATE SCAV. CONC. LAUNDER ROW NO.6, C2-3410-LA-604, 1128 3400-25J-014 ROUGHER CONCENTRATE ROUGHER CONC. LAUNDER ROW NO.6, C2-3410-LA-603 1135 3400-25J-014 C2-3410-SA-503 C2-3410-SA-603 T1 T1 SCAVENGER TAILING SCAVENGER CELL NO.4 ROW NO.6, C2-3410-CF-606 1250 3400-25J-016 SCAVENGER TAILING SCAVENGER CELL NO.4 ROW NO.5, C2-3410-CF-506 1237 3400-25J-016 SCAV. CONCENTRATE SCAVENGER CONCENTRATE LAUNDER, C2-3410-LA-504 1236 3400-25J-016 ROUGHER CONCENTRATE ROUGHER CONCENTRATE ROW NO.6 SAMPLER, 1235 3400-25J-021 PROCESS WATER 1247 3400-25J-016 SCAVENGER TAILING SCAVENGER CELL NO.4 ROW NO.5, C2-3410-CF-506 1248 3400-25J-016 SCAVENGER TAILING SCAVENGER CELL NO.4 ROW NO.6, C2-3410-CF-606 1253 3400-25J-016 PROCESS WATER 1246 3400-25J-016 ROUGHER CONCENTRATE ROUGHER CONCENTRATE ROW NO. 5 SAMPLER, 1249 3400-25J-021 SCAV. CONCENTRATE SCAV. CONCENTRATE LAUNDER, C2-3410-LA-604 1251 3400-25J-016 T1 T1 3410-WR-1655-C1A-2"-N 3410-WR-1667-C1A-3"-N 3410-WR-1651-C1A-1-1/2"-N 3410-WR-1624-C1A-1-1/2"-N 3930-WR-1202-C1A-3"-N 3410-WR-1622-C1A-1-1/2"-N 3930-WR-1202-C1A-3"-N 3410-WR-1650-C1A-2"-N 3410-WR-1656-C1A-1-1/2"-N 3410-SL-1158-R1A-18"-N SIZE: C2-3410-ST-669 SCAVENGER FLOTATION CONE DIST. BOX NO. 6 ROW NO. 6 3410-SL-1157-R1A-18"-N 3930-WR-1203-C1A-3"-N SIZE: 255 m3 MATERIAL: MOTOR: 300.00 kW C2-3410-CF-504 SCAVENGER FLOTATION CELL NO.2 ROW NO.5 3410-WR-1621-C1A-2"-N 3410-SL-1161-R1B-28"-N SIZE: 255 m3 MATERIAL: MOTOR: 300.00 kW C2-3410-CF-605 SCAVENGER FLOTATION CELL NO.3 ROW NO.6 3410-WR-1625-C1A-1-1/2"-N SIZE: C2-3410-ST-569 SCAVENGER FLOTATION CONE. DIST BOX NO. 5 ROW NO. 5 3410-WR-1623-C1A-2"-N SIZE: 255 m3 MATERIAL: MOTOR: 300.00 kW C2-3410-CF-604 SCAVENGER FLOTATION CELL NO.2 ROW NO.6 3930-WR-1203-C1A-3"-N 3410-WR-1653-C1A-3"-N SIZE: 255 m3 MATERIAL: MOTOR: 300.00 kW C2-3410-CF-505 SCAVENGER FLOTATION CELL NO.3 ROW NO.5 AG KM LT ISSUED FOR CLIENT REVIEW 22-Dec-11 B RP ISSUED FOR COMBINED REVIEW 29-Jun-11 A 12/22/2011 K. MUNDY A. GUNSON W. BIE L. TAMELIN 12/22/2011 2:52:31 PM WBS: 3400 B PIPING AND INSTRUMENTATION DIAGRAM FLOTATION 3400-25J-015 SCAV ROWS 5 & 6, CELLS 2 & 3 3410 01504 XV + 3410 01524 XV + 3410 01504 ZS 3410 01505 ZS 3410 01504 XA 3410 01505 XA OP/CL OP/CL 3410 01524 ZS 3410 01525 ZS 3410 01524 XA 3410 01525 XA OP/CL OP/CL MISMATCH MISMATCH MISMATCH MISMATCH V V V V V V V V V V V V V V V V 3410-SL-1163-R1B-28"-N 3410-SL-1164-R1B-28"-N FI FI FI FI V V V V V V V V V V V V V V V V C2-3410-CF-603 C2-3410-CF-603 C2-3410-CF-503 C2-3410-CF-503 3410-RC-1085-C1D-1"-N 3410-RC-1085-C1D-1"-N 3410-RC-1048-C1D-1"-N 3410-RC-1048-C1D-1"-N FROTHER ALCOHOL INJECTOR, C2-3910-ZM-745 4094 3900-25J-006 3400-RF- -C1D-1"-N IMAGE FROTHER ALCOHOL INJECTOR, C2-3910-ZM-746 4095 3900-25J-006 3400-RF- -C1D-1"-N SCAVENGER SCAVENGER FLOTATION CELL NO.1, ROW NO.6, 4096 3400-25J-014 C2-3410-CF-603 3410-SL-1800-R1B-28"-N IMAGE SCAVENGER SCAVENGER FLOTATION CELL NO.1, ROW NO.5, 4097 3400-25J-014 C2-3410-CF-503 MOLY COLLECTOR INJECTOR, C2-3910-ZM-577 3806 3900-25J-003 SECONDARY COLLECTOR INJECTOR, C2-3910-ZM-626 3800 3900-25J-002 MOLY COLLECTOR INJECTOR, C2-3910-ZM-578 3805 3900-25J-003 SECONDARY COLLECTOR INJECTOR, C2-3910-ZM-627 3801 3900-25J-002 IMAGE IMAGE
  • 148.
    D 4 F B A 3 2 1 5 68 E 7 C REV. APPROVED CHK. DES. REV. DATE REVISION DESCRIPTION CLIENT LEAD ENGINEER SCALE DRAWING NUMBER CHECK DESIGN CHECK DRAWING DESIGNED BY DRAWN BY APPROVAL DATE APPROVAL DATE APPROVED CHK. DES. REV. DATE REVISION DESCRIPTION REFERENCE DRAWING No. 1:100 0 1:200 5m 10m 0 5m 10m 15m 20m 1:500 10m 0 20m 30m 40m 50m 1:1000 0 100m 50m 1:20 0 0.5m 1m 1.5m 2m 0 1:25 0.5m 1m 1.5m 1:33 1/3 2.5m 2m 0 1m 2m 3m 0 1:50 1m 2m 3m 4m 5m CAD FILE NAME: P:0CAD000SPEM** MODEL UPDATED: DWG. FILE UPDATED: MANUAL CHANGES MADE: YES NO YES NO YES NO PROJECT MANAGER ENGINEERING MANAGER AREA PROJECT ENGINEER REFERENCE DRAWINGS SAFETY SHARE: APPROVAL DATE CONTRACT NO. SAFETY SHARE : BA6CVA1.IGR NOTICE: THIS DRAWING HAS NOT BEEN PUBLISHED AND IS THE SOLE PROPERTY OF FLUOR AND IS LENT TO THE BORROWER FOR THEIR CONFIDENTIAL USE ONLY, AND IN CONSIDERATION OF THE LOAN OF THIS DRAWING, THE BORROWER PROMISES AND AGREES TO RETURN IT UPON REQUEST AND AGREES THAT IT WILL NOT BE REPRODUCED, COPIED LENT OR OTHERWISE DISPOSED OF DIRECTLY OR INDIRECTLY, NOR USED FOR ANY OTHER PURPOSE OTHER THAN WHICH IT IS FURNISHED. NONE Apr 2011 240K-C2- VENDOR VENDOR 3410 01691 II 3410 01691 XA FAULT 3410 01622 LIT 3410 01613 AT 3410 01611 LIC 3410 01611 LIT 3410 01623 AT 3410 01622 LI 3410 01623 AI 3410 01603 AI 3410 01603 AT 3410 01632 LIT 3410 01682 II 3410 01631 LIC 3410 01692 II 3410 01602 LI 3410 01601 LIC 3410 01613 AI 3410 01601 LIT 3410 01632 LE 3410 01682 XA FAULT 3410 01602 LIT 3410 01612 LIT 3410 01612 LI 3410 01633 AT 3410 01681 XA FAULT 3410 01621 LIT 3410 01682 HS 3410 01681 II 3410 01621 LIC 3410 01633 AI 3410 01681 HS 3410 01631 LE 3410 01622 LE 3410 01602 LE 3410 01632 LI 3410 01601 LE 3410 01621 LE 3410 01691 HS 3410 01612 LE 3410 01611 LE 3410 01692 XA FAULT 3410 01692 HS 3410 01631 LIT MIN. MIN. MIN. MIN. TO ATM TO ATM TO ATM TO ATM AIR INTAKE MIN. J/SP J/SP MIN. AIR INTAKE MIN. J/SP AIR INTAKE J/SP VENDOR VENDOR VENDOR VENDOR MIN. AIR INTAKE VENDOR VENDOR VENDOR VENDOR VENDOR (LAUNDER) VENDOR (LAUNDER) (LAUNDER) (LAUNDER) VENDOR VENDOR VENDOR VENDOR VENDOR VENDOR VENDOR VENDOR 28"x18" 1-1/2"x1/2" 1-1/2"x1/2" C2-3410-CF-507 C2-3410-CF-506 C2-3410-CF-606 C2-3410-CF-607 1-1/2"x1/2" 1-1/2"x1/2" 28"x18" 28"x18" 12" 12" 12" 12" 28"x18" 3410 01631 A LV + 3410 01631 B LV + 3410 01611 B LV + 3410 01611 A LV + 3410 01601 A LV + 3410 01601 B LV + 3410 01621 A LV + 3410 01621 B LV + PROCESS WATER 1247 3400-25J-015 SCAVENGER TAILING SCAV. FLOTATION CELL NO.3 ROW NO.5, C2-3410-CF-505 1248 3400-25J-015 SCAVENGER TAILING SCAV. FLOTATION CELL NO.3 ROW NO.5, C2-3410-CF-505 1237 3400-25J-015 PROCESS WATER 1246 3400-25J-015 SCAVENGER TAILING SCAV. FLOTATION CELL NO.3 ROW NO.6, C2-3410-CF-605 1253 3400-25J-015 SCAVENGER TAILING SCAV. FLOTATION CELL NO.3 ROW NO.6, C2-3410-CF-605 1250 3400-25J-015 SCAV. CONCENTRATE SCAVENGER CONCENTRATE LAUNDER, C2-3410-LA-604 1251 3400-25J-015 SCAV. CONCENTRATE SCAVENGER CONCENTRATE LAUNDER, C2-3410-LA-504 1236 3400-25J-015 T1 SCAV. CONCENTRATE SCAV. CONC. LAUNDER ROW NO.5, C2-3410-LA-504 1147 3400-25J-017 SCAVENGER TAILING SCAV. CELL NO.6 ROW NO.6, C2-3410-CF-608 1140 3400-25J-017 T1 SCAVENGER TAILING SCAV. CELL NO.6 ROW NO.6, C2-3410-CF-608 1139 3400-25J-017 SCAVENGER TAILING SCAV. CELL NO.6 ROW NO.5, C2-3410-CF-508 1137 3400-25J-017 T1 PROCESS WATER 1146 3400-25J-017 PROCESS WATER 1144 3400-25J-017 SCAV. CONCENTRATE SCAV. CONC. LAUNDER ROW NO.6, C2-3410-LA-604 1138 3400-25J-017 SCAVENGER TAILING SCAV. CELL NO.6 ROW NO.5, C2-3410-CF-508 1145 3400-25J-017 T1 3410-WR-1202-C1A-3"-N 3410-WR-1668-C1A-1-1/2"-N 3410-WR-1629-C1A-1-1/2"-N 3410-WR-1655-C1A-2"-N 3930-WR-1203-C1A-3"-N SIZE: 255 m3 MATERIAL: MOTOR: 300.00 kW C2-3410-CF-507 SCAVENGER FLOTATION CELL NO.5 ROW NO.5 SIZE: 255 m3 MATERIAL: MOTOR: 300.00 kW C2-3410-CF-506 SCAVENGER FLOTATION CELL NO.4 ROW NO.5 3410-SL-1166-R1B-28"-N 3410-WR-1628-C1A-1-1/2"-N 3410-WR-1657-C1A-1-1/2"-N 3410-WR-1630-C1A-1-1/2"-N 3410-SL-1167-R1B-28"-N 3410-WR-1659-C1A-1-1/2"-N 3410-WR-1658-C1A-2"-N 3410-WR-1631-C1A-2"-N 3410-SL-1165-R1B-28"-N 3410-WR-1656-C1A-1-1/2"-N SIZE: 255 m3 MATERIAL: MOTOR: 300.00 kW C2-3410-CF-606 SCAVENGER FLOTATION CELL NO.4 ROW NO.6 3930-WR-1203-C1A-3"-N 3410-WR-1632-C1A-1-1/2"-N SIZE: 255 m3 MATERIAL: MOTOR: 300.00 kW C2-3410-CF-607 SCAVENGER FLOTATION CELL NO.5 ROW NO.6 3410-WR-1627-C1A-2"-N 3410-WR-1626-C1A-1-1/2"-N 3410-SL-1168-R1B-28"-N AG KM LT ISSUED FOR CLIENT REVIEW 22-Dec-11 B RP ISSUED FOR COMBINED REVIEW 29-Jun-11 A 12/22/2011 K. MUNDY A. GUNSON W. BIE L. TAMELIN 12/21/2011 5:43:28 PM WBS: 3400 B PIPING AND INSTRUMENTATION DIAGRAM FLOTATION 3400-25J-016 SCAV ROWS 5 & 6, CELLS 4 & 5 V V V V V V V V V V V V V V V V V V V V V V V V IMAGE IMAGE IMAGE IMAGE
  • 149.
    D 4 F B A 3 2 1 5 68 E 7 C REV. APPROVED CHK. DES. REV. DATE REVISION DESCRIPTION CLIENT LEAD ENGINEER SCALE DRAWING NUMBER CHECK DESIGN CHECK DRAWING DESIGNED BY DRAWN BY APPROVAL DATE APPROVAL DATE APPROVED CHK. DES. REV. DATE REVISION DESCRIPTION REFERENCE DRAWING No. 1:100 0 1:200 5m 10m 0 5m 10m 15m 20m 1:500 10m 0 20m 30m 40m 50m 1:1000 0 100m 50m 1:20 0 0.5m 1m 1.5m 2m 0 1:25 0.5m 1m 1.5m 1:33 1/3 2.5m 2m 0 1m 2m 3m 0 1:50 1m 2m 3m 4m 5m CAD FILE NAME: P:0CAD000SPEM** MODEL UPDATED: DWG. FILE UPDATED: MANUAL CHANGES MADE: YES NO YES NO YES NO PROJECT MANAGER ENGINEERING MANAGER AREA PROJECT ENGINEER REFERENCE DRAWINGS SAFETY SHARE: APPROVAL DATE CONTRACT NO. SAFETY SHARE : BA6CVA1.IGR NOTICE: THIS DRAWING HAS NOT BEEN PUBLISHED AND IS THE SOLE PROPERTY OF FLUOR AND IS LENT TO THE BORROWER FOR THEIR CONFIDENTIAL USE ONLY, AND IN CONSIDERATION OF THE LOAN OF THIS DRAWING, THE BORROWER PROMISES AND AGREES TO RETURN IT UPON REQUEST AND AGREES THAT IT WILL NOT BE REPRODUCED, COPIED LENT OR OTHERWISE DISPOSED OF DIRECTLY OR INDIRECTLY, NOR USED FOR ANY OTHER PURPOSE OTHER THAN WHICH IT IS FURNISHED. NONE Apr 2011 240K-C2- 3410 01712 LI 3410 01711 LE 3410 01712 LIT 3410 01712 LE 3410 01711 LIT 3410 01782 XA FAULT 3410 01711 LIC 3410 01732 LE 3410 01713 AT 3410 01732 LI 3410 01713 AI 3410 01731 LE 3410 01792 II 3410 01733 AI 3410 01731 LIC 3410 01782 II 3410 01732 LIT 3410 01782 HS 3410 01731 LIT 3410 01792 HS 3410 01733 AT 3410 01792 XA FAULT TO ATM MIN. TO ATM MIN. MIN. AIR INTAKE VENDOR MIN. AIR INTAKE J/SP J/SP VENDOR VENDOR VENDOR VENDOR VENDOR 3410 01731 LV + C2-3410-CF-508 C2-3410-CF-608 3410 01711 LV + C2-3410-SA-602 C2-3410-AZ-603 C2-3410-SA-502 C2-3410-AZ-503 12" 12" 28"x18" 1-1/2"x1/2" 28"x18" 1-1/2"x1/2" (LAUNDER) (LAUNDER) (LAUNDER) PROCESS WATER 1144 3400-25J-016 SCAVENGER TAILING SCAV. FLOTATION CELL NO.5 ROW NO.5, C2-3410-CF-307 1145 3400-25J-016 SCAVENGER TAILING SCAV. FLOTATION CELL NO.5 ROW NO.5, C2-3410-CF-307 1137 3400-25J-016 SCAV. CONCENTRATE SCAV. CONC. LAUNDER ROW NO.3, C2-3410-LA-504 1147 3400-25J-016 PROCESS WATER 1146 3400-25J-016 SCAVENGER TAILING SCAV. FLOTATION CELL NO.5 ROW NO.6, C2-3410-CF-407 1140 3400-25J-016 SCAVENGER TAILING SCAV. FLOTATION CELL NO.5 ROW NO.6, C2-3410-CF-407 1139 3400-25J-016 SCAV. CONCENTRATE SCAV. CONC. LAUNDER ROW NO.4, C2-3410-LA-604 1138 3400-25J-016 SCAV. CONCENTRATE SCAV. ROW NO.5 CONC. PRIM. SAMPLER, C2-3410-SA-504 1413 3400-25J-021 SCAV. CONCENTRATE SCAV. ROW NO.6 CONC. PRIM. SAMPLER, C2-3410-SA-604 1415 3400-25J-021 T1 SCAVENGER TAILING PLANT TAILING COLLECTION LAUNDER, C2-3710-LA-001 1095 3700-25J-001 SCAVENGER TAILING PLANT TAILING COLLECTION LAUNDER, C2-3710-LA-001 1096 3700-25J-001 T1 SIZE: C2-3410-AZ-503 SCAVENGER TAILING ROW NO.5 ANALYZER 3410-WR-1664-C1A-1-1/2"-N SIZE: 255 m3 MATERIAL: MOTOR: 300.00 kW C2-3410-CF-508 SCAVENGER FLOTATION CELL NO.6 ROW NO.5 3410-WR-1669-C1A-1-1/2"-N SIZE: 255 m3 MATERIAL: MOTOR: 300.00 kW C2-3410-CF-608 SCAVENGER FLOTATION CELL NO.6 ROW NO.6 3930-WR-1203-C1A-3"-N SIZE: C2-3410-SA-602 SCAVENGER TAILING ROW NO.6 SAMPLER SIZE: C2-3410-AZ-603 SCAVENGER TAILING ROW NO.6 ANALYZER 3410-WR-1638-C1A-2"-N 3410-WR-1637-C1A-1-1/2"-N 3410-WR-1663-C1A-2"-N 3410-SL-1172-R1B-28"-N 3410-WR-1662-C1A-1-1/2"-N 3410-SL-1171-R1B-28"-N 3410-WR-1639-C1A-1-1/2"-N 3930-WR-1203-C1A-3"-N 3410-WR-1641-C1A-1-1/2"-N 3410-WR-1636-C1A-1-1/2"-N SIZE: C2-3410-SA-502 SCAVENGER TAILING ROW NO.5 SAMPLER 3410-WR-1640-C1A-1-1/2"-N 3410-WR-1642-C1A-1-1/2"-N AG KM LT ISSUED FOR CLIENT REVIEW 22-Dec-11 B RP ISSUED FOR COMBINED REVIEW 29-Jun-11 A 12/22/2011 K. MUNDY A. GUNSON W. BIE L. TAMELIN 12/20/2011 5:03:37 PM WBS: 3400 B PIPING AND INSTRUMENTATION DIAGRAM FLOTATION 3400-25J-017 SCAV ROWS 5 & 6, CELL 6 AND TAIL SAMPLING 3930-WR-1202-C1A-3"-N VENDOR VENDOR (LAUNDER) V V PROCESS WATER 1414 3400-25J-021 3410-SL-1665-R1B-48"-N 3410-SL-1666-R1B-48"-N V V V V V V V V IMAGE IMAGE
  • 150.
    D 4 F B A 3 2 1 5 68 E 7 C REV. APPROVED CHK. DES. REV. DATE REVISION DESCRIPTION CLIENT LEAD ENGINEER SCALE DRAWING NUMBER CHECK DESIGN CHECK DRAWING DESIGNED BY DRAWN BY APPROVAL DATE APPROVAL DATE APPROVED CHK. DES. REV. DATE REVISION DESCRIPTION REFERENCE DRAWING No. 1:100 0 1:200 5m 10m 0 5m 10m 15m 20m 1:500 10m 0 20m 30m 40m 50m 1:1000 0 100m 50m 1:20 0 0.5m 1m 1.5m 2m 0 1:25 0.5m 1m 1.5m 1:33 1/3 2.5m 2m 0 1m 2m 3m 0 1:50 1m 2m 3m 4m 5m CAD FILE NAME: P:0CAD000SPEM** MODEL UPDATED: DWG. FILE UPDATED: MANUAL CHANGES MADE: YES NO YES NO YES NO PROJECT MANAGER ENGINEERING MANAGER AREA PROJECT ENGINEER REFERENCE DRAWINGS SAFETY SHARE: APPROVAL DATE CONTRACT NO. SAFETY SHARE : BA6CVA1.IGR NOTICE: THIS DRAWING HAS NOT BEEN PUBLISHED AND IS THE SOLE PROPERTY OF FLUOR AND IS LENT TO THE BORROWER FOR THEIR CONFIDENTIAL USE ONLY, AND IN CONSIDERATION OF THE LOAN OF THIS DRAWING, THE BORROWER PROMISES AND AGREES TO RETURN IT UPON REQUEST AND AGREES THAT IT WILL NOT BE REPRODUCED, COPIED LENT OR OTHERWISE DISPOSED OF DIRECTLY OR INDIRECTLY, NOR USED FOR ANY OTHER PURPOSE OTHER THAN WHICH IT IS FURNISHED. NONE Apr 2011 240K-C2- 3410-SL-1182-R1A-4"-N 3410-SL-1185-R1A-4"-N 3410-SL-1181-R1A-4"-N 3410-SL-1180-R1A-4"-N 3410-SL-1179-R1A-4"-N 3410-SL-1178-R1A-12"-N 3"x16" 3410-SL-1184-R1A-18"-N 3410-SL-1176-R1A-4"-N 3410-SL-1175-R1A-4"-N V V V V V 3410-SL-1157-R1A-18"-N V V 18"x16" 1-1/2"x1" V 2"x1/2" V SIZE: C2-3410-AZ-504 ROUGHER/SCAVENGER CONCENTRATE ROWS NO.5 & NO.6 INSTREAM ANALYZER C2-3410-AZ-504 SLOPE NOTE 1 C2-3410-SA-603 SIZE: MATERIAL: CAPACITY: TRIM: C2-3410-SA-503 ROUGHER CONC. ROW NO.5 SAMPLER NOTE 1 C2-3410-SA-504 NOTE 1 SLOPE SIZE: MATERIAL: CAPACITY: TRIM: C2-3410-SA-504 SCAVENGER CONC. ROW NO.5 SAMPLER C2-3410-SA-604 FLUOR 18"x16" NOTES: 1. PROVISION FOR SHIFT SAMPLE 1-1/2"x1" C2-3410-SA-503 NOTE 1 SLOPE 3410-WF-1175-C1A-2"-N SIZE: MATERIAL: CAPACITY: TRIM: C2-3410-SA-603 ROUGHER CONC. ROW NO.6 SAMPLER 3410-SL-1177-R1A-12"-N 3410-SL-1158-R1A-18"-N 18"x16" 6"x4" 3930-WR-1202-C1A-3"-N 6"x4" SLOPE 3410-SL-1186-R1A-4"-N VENDOR 1-1/2"x1" 3410-SL-1183-R1A-18"-N 1-1/2"x1" SIZE: MATERIAL: CAPACITY: TRIM: C2-3410-SA-604 SCAVENGER CONC. ROW NO.6 SAMPLER SCAV. CONCENTRATE COMBINED SCAVENGER COLLECTION LAUNDER (PIPE) 1450 3400-25J-005 SCAV. CONCENTRATE COMBINED SCAVENGER COLLECTION LAUNDER (PIPE) 1451 3400-25J-005 SCAV. CONCENTRATE COMBINED SCAVENGER COLLECTION LAUNDER (PIPE) 1447 3400-25J-005 SCAV. CONCENTRATE COMBINED SCAVENGER COLLECTION LAUNDER (PIPE) 1446 3400-25J-005 ROUGHER CONCENTRATE COMBINED ROUGHER COLLECTION LAUNDER (PIPE) 1442 3400-25J-005 ROUGHER CONCENTRATE COMBINED ROUGHER COLLECTION LAUNDER (PIPE) 1440 3400-25J-005 ROUGHER CONCENTRATE COMBINED ROUGHER COLLECTION LAUNDER (PIPE) 1437 3400-25J-005 ROUGHER CONCENTRATE COMBINED ROUGHER COLLECTION LAUNDER (PIPE) 1436 3400-25J-005 SCAV. CONCENTRATE SCAVENGER CONC. LAUNDER ROW NO. 6, C2-3410-LA-604 1415 3400-25J-017 ROUGHER CONCENTRATE ROUGHER CONC. LAUNDER ROW NO. 5, C2-3410-LA-503 2175 3400-25J-014 ROUGHER CONCENTRATE ROUGHER CONC. LAUNDER ROW NO. 6, C2-3410-LA-603 2176 3400-25J-014 FRESH WATER 2177 5100-25J-014 AI AG KM LT ISSUED FOR CLIENT REVIEW 22-Dec-11 B RP ISSUED FOR COMBINED REVIEW 29-Jun-11 A 12/22/2011 K. MUNDY A. GUNSON W. BIE L. TAMELIN 12/22/2011 2:54:50 PM WBS: 3400 B PIPING AND INSTRUMENTATION DIAGRAM FLOTATION 3400-25J-021 CONCENTRATE SAMPLING ROWS 5 & 6 SCAV. CONCENTRATE SCAVENGER CONC. LAUNDER ROW NO. 5, 1413 3400-25J-017 C2-3410-LA-504 3410-WR-1670-C1A-1-1/2"-N 3410-WR-1672-C1A-1-1/2"-N 3410-WR-1673-C1A-1-1/2"-N 3410-WR-1671-C1A-1-1/2"-N PROCESS WATER 1414 3400-25J-017
  • 151.
    T3 AFD T3 OP/CL 3420 32201 ZS OP/CL 3420 32201 XA 3420 02208 XA 3420 02208 ZS 3420 02212 XA 3420 02212 ZS OP/CL 3420 02218 XA 3420 02218 ZS OP/CL 3420 02222 XA MISMATCH 3420 02223 XA 3420 02222 ZS 3420 02223 ZS 3420 02221 XA 3420 02282 XA 3420 02202 FIT M 3420 02203 FY 3420 02206 PI 3420 02221 ZS 3420 02201 FIT 3420 02211 PIT 3420 02203 DIC 3420 02210 LIC 3420 02213 PI 3420 02214 FI 3420 02214 FIT M 3420 02202 FIC 3420 02203 WQI 3420 02203 FIT 3420 02204 FIT 3420 02281 HS M 3420 02281 II 3420 02282 II 3420 02282 G TE 3420 02205 PIT M M 3420 02203 DIT 3420 02211 PIC 3420 02281 G TE 3420 02204 FIL, P2 LL, P1 3420 02282 HS 3420 02281 G TI 3420 02281 H TI BRG FRONT H, P2 HH, P1 3420 02282 H TE 3420 02203 FI 3420 02281 H TE 3420 02205 PI 3420 02215 PIT 3420 02203 DE 3420 02281 XA FAULT 3420 02210 LI 3420 02282 H TI BRG REAR H, P2 HH, P1 BRG FRONT H, P2 HH, P1 3420 02210 LE 3420 02201 FIC 3420 02282 G TI 3420 02210 LT 3420 02203 DX 3420 02215 PI TO FLOOR H/G REGRIND CYCLONE U/F SCAV. CONC. COLLECTION PUMPBOX, C2-3420-BX-504 3387 3400-25J-026 REG. AREA SUMP REGRIND AREA SPILLAGE PUMP, C2-3420-PP-529 2388 3400-25J-024 L/G REGRIND CYCLONE U/F L/G REGRIND MILL FEED PUMP, C2-3420-PP-530 3389 3400-25J-027 H/G REGRIND MILL HIGH GRADE REGRIND MILL NO.1, C2-3420-ML-503 2185 3400-25J-023 RECLEANER TAILING RECLEANER TAILING SAMPLER, C2-3410-SA-536 2183 3400-25J-051 MOLY COLLECTOR, INJECTOR, C2-3910-ZM-576 2186 3900-25J-003 H/G REGRIND CYCLONE U/F H/G REGRIND MILL NO.2 FEED PUMPBOX, C2-3420-BX-506 2190 3400-25J-024 H/G REGRIND CYCLONE U/F H/G REGRIND MILL NO.1 FEED PUMPBOX, C2-3420-BX-505 2189 3400-25J-023 H/G REGRIND CYCLONE O/F H/G REGRIND MILL PRODUCT SAMPLER, C2-3420-SA-541 2187 3400-25J-025 EMERGENCY SUMP RETURN REGRIND EMERGENCY O/F SUMP PUMP NO. 1, 3809 3400-25J-032 EMERGENCY SUMP RETURN REGRIND EMERGENCY O/F SUMP PUMP NO. 2, 3808 3400-25J-032 H/G REGRIND CYCLONE H/G REGRIND MILL PRODUCT SAMPLER, C2-3420-SA-541 3376 3400-25J-025 H/G REGRIND MILL HIGH GRADE REGRIND MILL NO.2, C2-3420-ML-504 2184 3400-25J-024 ROUGHER CONCENTRATE COMBINED ROUGHER CONC. LAUNDER (PIPE), 1429 3400-25J-005 PROCESS WATER 2180 3900-25J-016 PROCESS WATER 2179 3900-25J-016 L/G REGRIND CYCLONE U/F L/G REGRIND CYCLONE U/F LAUNDER, C2-3420-LA-500 3813 3400-25J-026 A-Q A-Q A-Q OP/CL OP/CL SLOPE OP/CL MIN TO FLOOR BRG REAR H, P2 HH, P1 MISMATCH L, P2 LL, P1 J/SP C2-3420-PP-538 SLOPE J/SP TO FLOOR MIN L, P2 MISMATCH MISMATCH H, P2 L, P2 LL, P2 RSP MISMATCH MISMATCH MISMATCH MIN C2-3420-PP-537 AFD FAULT MIN MIN MIN MIN L, P2 SLOPE MASS FLOW TO FLOOR CONTENTS 10"x8" FI C2-3420-CS-505 C2-3420-PP-502 SP-3400 3420 02221 XV + C2-3420-BX-502 4"x3" 1-1/2" 10"x8" 3420 02214 FE + 3420 02201 FE + 4"x3" 1-1/2" 3420 02202 FV + 3420 32201 XV + C2-3420-LA-502 SP-3400 3420 02212 XV + 1-1/2" 3420-SL-1195-R1B-22"-N 3420-SL-1196-R1B-22"-N 4" 3420 02208 XV + FI 3420 02222 XV + 3420 02203 FE + 3420 02223 XV + 2"x1" FI 1-1/2" C2-3420-DI-501 3420-SL-1266-C1B-6"-N 3420-SL-1263-C1B-6"-N 1/2" C2-3420-PP-503 3420 02201 FV + 3420 02204 FE + 3420 02218 XV + 3420 02202 FE + AG KM LT ISSUED FOR CLIENT REVIEW 22-Dec-11 B RP ISSUED FOR COMBINED REVIEW 29-Jun-11 A 12/22/2011 K. MUNDY A. GUNSON W. BIE L. TAMELIN 12/22/2011 2:55:45 PM WBS: 3420 B PIPING AND INSTRUMENTATION DIAGRAM REGRIND CIRCUIT 3400-25J-022 HIGH GRADE REGRIND CYCLONES 3420-SL- -R1B-22"-N ES 3420-WR-1278-C1A-10"-N 3420-WG-1060-C1A-1"-N 3420-SL-1204-R1A-26"-N 3420-WG-1016-C1A-1"-N SIZE: MATERIAL: MOTOR: C2-3420-PP-502 HIGH GRADE REGRIND CYCLONE FEED PUMP NO.1 3420-SL-02220-R1B-42"-N ES 3420-WR-1269-C1A-4"-N 3420-SL-1193-R1A-42"-N SIZE: MATERIAL: CAPACITY: TRIM: 3420-SL-1187-C1B C2-3420-BX-502 ROUGHER CONCENTRATE COLLECTION PUMP BOX ES 3420-SL-1210-R1A-26"-N ES 3420-WR-1674-C1A-10"-N 3420-WR-1269-C1A-4"-N 3420-WG-1016-C1A-2"-N SIZE: MATERIAL: MOTOR: C2-3420-PP-503 HIGH GRADE REGRIND CYCLONE FEED PUMP NO.2 3420-SL-1190-R1A-48"-N SIZE: C2-3420-LA-502 HIGH GRADE REGRIND CYCLONE UNDERFLOW LAUNDER SIZE:13 x 508 mm C2-3420-CS-505 HIGH GRADE REGRIND CIRCUIT CYCLONE CLUSTER 3420-SL-1373-C1A-16"-N 3420-SL-1189-R1A-48"-N SIZE: C2-3420-DI-501 HIGH GRADE REGRIND FEED DISTRIBUTOR 3420-SL-1119-R1A-24"-N 3420-RC-1138-C1D-1"-N ES 3420-SL-1192-R1B-42"-N ES ES V V V V V V V V V V FI 3420-SL-1212-R1A-6"-N 3420-SL-1188-R1B-42"-N FI FI FI FI FC D 4 F B A 3 2 1 5 6 8 E 7 C REV. APPROVED CHK. DES. REV. DATE REVISION DESCRIPTION CLIENT LEAD ENGINEER SCALE DRAWING NUMBER CHECK DESIGN CHECK DRAWING DESIGNED BY DRAWN BY APPROVAL DATE APPROVAL DATE APPROVED CHK. DES. REV. DATE REVISION DESCRIPTION REFERENCE DRAWING No. 1:100 0 1:200 5m 10m 0 5m 10m 15m 20m 1:500 10m 0 20m 30m 40m 50m 1:1000 0 100m 50m 1:20 0 0.5m 1m 1.5m 2m 0 1:25 0.5m 1m 1.5m 1:33 1/3 2.5m 2m 0 1m 2m 3m 0 1:50 1m 2m 3m 4m 5m CAD FILE NAME: P:0CAD000SPEM** MODEL UPDATED: DWG. FILE UPDATED: MANUAL CHANGES MADE: YES NO YES NO YES NO PROJECT MANAGER ENGINEERING MANAGER AREA PROJECT ENGINEER REFERENCE DRAWINGS SAFETY SHARE: APPROVAL DATE CONTRACT NO. SAFETY SHARE : BA6CVA1.IGR NOTICE: THIS DRAWING HAS NOT BEEN PUBLISHED AND IS THE SOLE PROPERTY OF FLUOR AND IS LENT TO THE BORROWER FOR THEIR CONFIDENTIAL USE ONLY, AND IN CONSIDERATION OF THE LOAN OF THIS DRAWING, THE BORROWER PROMISES AND AGREES TO RETURN IT UPON REQUEST AND AGREES THAT IT WILL NOT BE REPRODUCED, COPIED LENT OR OTHERWISE DISPOSED OF DIRECTLY OR INDIRECTLY, NOR USED FOR ANY OTHER PURPOSE OTHER THAN WHICH IT IS FURNISHED. NONE Apr 2011 240K-C2- 3420-SL- -R1A-28"-N M 3420 02217 II 3420 02217 XA 3420 02217 HS FAULT J/SP AFD 3420 32202 PI GLAND SEAL WATER 2954 3900-25J-023 PRODUCT PRODUCT 3420-SL- -R1B-22"-N 3420-SL- -C1A-16"-N NOTE 1 M 3420 02207 XV + 3420 02207 B HS 3420 02207 ZS OP/CL L/R 3420 02207 XA MISMATCH OP/CL FI M 3420 02209 XV + 3420 02209 B HS 3420 02209 ZS OP/CL L/R 3420 02209 XA MISMATCH OP/CL FI M 3420 02219 XV + 3420 02219 XA MISMATCH 3420 02219 ZS OP/CL 3420 02219 B HS OP/CL L/R FL M 3420 02225 XV + 3420 02225 B HS 3420 02225 ZS 3420 02225 XA MISMATCH OP/CL OP/CL L/R M 3420 02220 XV + 3420 02220 XA MISMATCH 3420 02220 B HS 3420 02220 ZS OP/CL OP/CL L/R FI NOTES: 1. PUMP BOX OUTLETS HAVE REMOVABLE WEAR INSERTS 2. BYPASS ARRANGEMENT TO BE DEFINED FEED NOTE 2
  • 152.
    T3 V1 T3 AFD V 3420 02304 FI 3420 02305 PI 3420 02304 FIT 3420 02305 PIT M 3420 02382 HS J/SP 3420 02382 XA FAULT 3420 02382 II MISMATCH 3420 02308 ZS 3420 02308 XA 3420 02316 XA 3420 02316 ZS 3420 02320 XA 3420 02309 XA 3420 02320 ZS 3420 02309 ZS 3420 02306 XA 3420 02306 ZS OP/CL 3420 02317 ZS 3420 02317 XA 3420 02318 XA 3420 02318 ZS OP/CL 3420 02312 ZS 3420 02312 XA MISMATCH 3420 02307 ZS 3420 02307 XA 3420 02319 ZS OP/CL 3420 02319 XA 3420 02302 DIC 3420 02302 WQI MASS FLOW CCTV 3420 02310 LT MISMATCH 3420 02302 DE 3420 02302 FIT 3420 02301 FIC 3420 02310 LE 3420 32301A FI 3420 02383 H TI BRG REAR H, P2 HH, P1 3420 02301 FIT 3420 02313 PI M 3420 32381 XA FAULT 3420 02303 YT 3420 02315 PIT 3420 02381 XA FAULT J/SP 3420 32401 A PDAH 3420 32382 II 3420 02303 YI 3420 02383 XA FAULT 3420 02314 FI L, P2 LL, P1 AFD 3420 02383 HS 3420 02383 II M 3420 02302 DIT 3420 02381 HS 3420 02302 FY 3420 32381 HS J/SP 3420 32401 B PDAH 3420 02302 FI 3420 02302 DX 3420 02383 G TE 3420 02381 II 3420 02314 FIT 3420 32301 B FI L, P2 LL, P1 L, P2 LL, P1 3420 32381 II 3420 32382 HS 3420 02310 LIC M 3420 02383 H TE 3420 02383 G TI 3420 32382 XA 3420 02315 PI 3420 02310 LI TO FLOOR GLAND SEAL WATER 2955 3900-25J-023 H/G REGRIND MILL ROUGHER CONCENTRATE COLLECTION PUMPBOX, 2185 3400-25J-022 H/G REGRIND CYCLONE U/F HIGH GRADE REGRIND FEED DISTRIBUTOR, C2-3420-DI-501 2189 3400-25J-022 PROCESS WATER 2191 3900-25J-016 H/G REGRIND CYCLONE U/F H/G REGRIND MILL NO.2, C2-3420-ML-514 2822 3400-25J-024 PLANT AIR 2192 3900-25J-021 H/G REGRIND CYCLONE U/F H/G REGRIND MILL PUMPBOX NO.2, C2-3420-BX-506 2823 3400-25J-024 L, P2 L, P2 LL, P1 MISMATCH OP/CL OP/CL OP/CL OP/CL OP/CL OP/CL OP/CL TO FLOOR TO FLOOR MIN FAULT PUMP PRODUCT P2 TO FLOOR J/SP VENDOR REDUCER LUBE SYSTEM RSP TO FLOOR LUBE OIL MIN SHAFT BEARING AUTO GREASE SYSTEM C2-3420-BX-502 MISMATCH MISMATCH MISMATCH MISMATCH MISMATCH MISMATCH P2 SLOPE LUBE OIL L, P2 COOLING FAN J/SP BRG FRONT H, P2 HH, P1 3420 02301 FV + 3420 02312 XV + 24"x14" 1-1/2" 3420 02314 FE + FI 1/2"x1/4" 3420 02317 XV + 3420 02318 XV + 4"x1-1/2" FI 1-1/2" C2-3420-BN-503 TO 506 3420 02302 FE + 10"x16" 3420 02306 XV + C2-3420-PP-520 1-1/2" FI 3420 02316 XV + ES 3420 02304 FE + V V FI FI FI FI FI C2-3420-PP-519 FI 3420 02309 XV + 3420 02320 XV + 3420 02307 XV + SIZE: MATERIAL: MOTOR: C2-3420-PP-519 HIGH GRADE REGRIND MILL FEED PUMP 3420 02301 FE + V C2-3420-BX-505 C2-3420-ML-503 3420 02308 XV + 24"x14" 3420 02319 XV + C2-3420-ZM-501 SIZE: C2-3420-ZM-501 VERTIMILL SCREW SUPPORT STAND 1-1/2" NC AG KM LT ISSUED FOR CLIENT REVIEW 22-Dec-11 B RP ISSUED FOR COMBINED REVIEW 29-Jun-11 A 12/22/2011 K. MUNDY A. GUNSON W. BIE L. TAMELIN 12/21/2011 5:49:10 PM WBS: 3420 B PIPING AND INSTRUMENTATION DIAGRAM REGRIND CIRCUIT 3400-25J-023 HIGH GRADE REGRIND MILL NO. 1 3420-WG-1055-C1A-2"-N ES ES ES 3420-SL-1362-C1B-10"-N 3420-SL-1195-R1B-22"-N 3420-SL-1784-C1B-1-1/2"-N SIZE: VTM 1500 MATERIAL: MOTOR: 1120.00 kW C2-3420-ML-503 HIGH GRADE REGRIND MILL NO.1 3420-WR-1267-C1A-4"-N 3420-AP-1254-C1A-1/2"-N 3420-SL-1204-R1A-26"-N 3420-SL-1200-R1A-24"-N SIZE: MATERIAL: MOTOR: C2-3420-PP-520 HIGH GRADE REGRIND MILL NO.1 FEED PUMP (AFD) 3420-SL-1202-R1A-14"-N SIZE:10 t MATERIAL: CAPACITY: TRIM: C2-3420-BN-503 TO 506 BALL BUCKET SIZE: MATERIAL: CAPACITY: TRIM:C1B C2-3420-BX-505 HIGH GRADE REGRIND MILL FEED PUMPBOX NO.1 ES ES 3420-WF-1675-C1A-3"-N 3420-SL-1201-R1A-14"-N 3420-SL-1207-R1A-16"-N FC 3420-SL-1203-R1A-16"-N 3420-SL-1199-R1A-24"-N 3420-WG-1059-C1A-1"-N D 4 F B A 3 2 1 5 6 8 E 7 C REV. APPROVED CHK. DES. REV. DATE REVISION DESCRIPTION CLIENT LEAD ENGINEER SCALE DRAWING NUMBER CHECK DESIGN CHECK DRAWING DESIGNED BY DRAWN BY APPROVAL DATE APPROVAL DATE APPROVED CHK. DES. REV. DATE REVISION DESCRIPTION REFERENCE DRAWING No. 1:100 0 1:200 5m 10m 0 5m 10m 15m 20m 1:500 10m 0 20m 30m 40m 50m 1:1000 0 100m 50m 1:20 0 0.5m 1m 1.5m 2m 0 1:25 0.5m 1m 1.5m 1:33 1/3 2.5m 2m 0 1m 2m 3m 0 1:50 1m 2m 3m 4m 5m CAD FILE NAME: P:0CAD000SPEM** MODEL UPDATED: DWG. FILE UPDATED: MANUAL CHANGES MADE: YES NO YES NO YES NO PROJECT MANAGER ENGINEERING MANAGER AREA PROJECT ENGINEER REFERENCE DRAWINGS SAFETY SHARE: APPROVAL DATE CONTRACT NO. SAFETY SHARE : BA6CVA1.IGR NOTICE: THIS DRAWING HAS NOT BEEN PUBLISHED AND IS THE SOLE PROPERTY OF FLUOR AND IS LENT TO THE BORROWER FOR THEIR CONFIDENTIAL USE ONLY, AND IN CONSIDERATION OF THE LOAN OF THIS DRAWING, THE BORROWER PROMISES AND AGREES TO RETURN IT UPON REQUEST AND AGREES THAT IT WILL NOT BE REPRODUCED, COPIED LENT OR OTHERWISE DISPOSED OF DIRECTLY OR INDIRECTLY, NOR USED FOR ANY OTHER PURPOSE OTHER THAN WHICH IT IS FURNISHED. NONE Apr 2011 240K-C2- M 3420 02307 B HS OP/CL L/R 3420 02317 B HS OP/CL L/R V3 V3 M ES ES NOTE 2 NOTE 1 NOTES: 1. PUMPBOX OUTLETS HAVE REMOVABLE WEAR INSERTS 2. 10" SQUARE UNLOAD PORT 3. BALL ADDITION POINT NOTE 3
  • 153.
    T3 T8 OP/CL V REDUCER LUBE SYSTEM SHAFT BEARING AUTOGREASE SYSTEM 3420 02418 ZS 3420 02482 XA 3420 02482 II 3420 02482 HS J/SP 3420 02404 LI H, P2 L, P2 LL, P1 3420 02404 LIT 3420 02404 LE 3420 02410 LI 3420 02410 LT 3420 02403 YI 3420 02410 LE 3420 32581 XA FAULT 3420 02402 DIC 3420 02403 YT 3420 02401 FIC 3420 32581 II 3420 02402 WQI MASS FLOW CCTV 3420 02401 FIT 3420 32582 XA 3420 02402 FY M 3420 02483 H TE 3420 32582 II 3420 02402 FI M 3420 02483 G TE 3420 32582 HS 3420 02415 PIT 3420 32581 HS J/SP 3420 02481 II 3420 02481 XA J/SP FAULT 3420 32501 A FI 3420 02481 HS L, P2 LL, P1 3420 32501 B FI L, P2 LL, P1 L, P2 LL, P1 3420 02402 FIT MISMATCH 3420 02402 DIT 3420 02402 DE 3420 02402 DX AFD 3420 02413 PI 3420 02483 XA FAULT M 3420 02483 II 3420 32601 B PDAH 3420 32601 A PDAH 3420 02414 FI 3420 02483 HS 3420 02415 PI 3420 02410 LIC 3420 02414 FIT 3420 02483 H TI BRG REAR H, P2 HH, P1 3420 02483 G TI 3420 02406 ZS OP/CL 3420 02406 XA MISMATCH 3420 02417 ZS 3420 02417 XA MISMATCH 3420 02407 XA 3420 02412 XA 3420 02407 ZS 3420 02412 ZS OP/CL 3420 02416 ZS 3420 02416 XA 3420 02419 XA MISMATCH 3420 02418 XA 3420 02419 ZS OP/CL TO FLOOR GLAND SEAL WATER 2956 3900-25J-023 REG. SUMP CONTENTS ROUGHER CONCENTRATE COLLECTION PUMPBOX, 2388 3400-25J-022 PLANT AIR 2389 3900-25J-021 PROCESS WATER 2391 3900-25J-016 H/G REGRIND MILL ROUGHER CONCENTRATE COLLECTION PUMPBOX, 2184 3400-25J-022 H/G REGRIND CYCLONE U/F HIGH REGRIND MILL FEED PUMP, C2-3420-PP-519 2822 3400-25J-023 H/G REGRIND CYCLONE U/F HIGH GRADE REGRIND FEED DISTRIBUTOR 2190 3400-25J-022 H/G REGRIND CYCLONE U/F HIGH GRADE REGRIND MILL FEED PUMP, C2-3420-PP-519 2823 3400-25J-023 RSP C2-3420-BX-502 TO FLOOR OP/CL COOLING FAN NOTE 1 LUBE OIL PUMP LUBE OIL SLOPE MIN VENDOR TO FLOOR L, P2 P2 P2 FAULT J/SP NOTE 2 J/SP BRG FRONT H, P2 HH, P1 TO FLOOR MIN FAULT OP/CL MISMATCH MISMATCH MISMATCH 3420 02417 XV + 3420 02419 XV + 3420 02407 XV + FI V V 3420-SL-1207-R1A-24"-N FI FI C2-3420-PP-529 SIZE: MATERIAL: MOTOR: C2-3420-PP-529 HIGH GRADE REGRIND AREA SPILLAGE PUMP 3420 02414 FE + 10"x16" 4"x1-1/2" 3420 02406 XV + 3420 02416 XV + 3420 02418 XV + FI C2-3420-BN-507 TO 510 C2-3420-PP-521 C2-3420-BX-506 C2-3420-ML-504 FI 1/2"x1/4" 1-1/2" 3420 02402 FE + 1-1/2" FI V 24"x14" 3420 02401 FE + 3420 02401 FV + 3420 02412 XV + FI 1-1/2" AG KM LT ISSUED FOR CLIENT REVIEW 22-Dec-11 B RP ISSUED FOR COMBINED REVIEW 29-Jun-11 A 12/22/2011 K. MUNDY A. GUNSON W. BIE L. TAMELIN 12/22/2011 3:12:55 PM WBS: 3420 B PIPING AND INSTRUMENTATION DIAGRAM REGRIND CIRCUIT 3400-25J-024 HIGH GRADE REGRIND MILL NO. 2 3420-WR-1268-C1A-4"-N 3420-SL-1196-R1B-22"-N ES ES SIZE:10 t MATERIAL: CAPACITY: TRIM: C2-3420-BN-507 TO 510 BALL BUCKET SIZE: MATERIAL: CAPACITY:21.0 m^3 TRIM:3420-SL-1206-C1B C2-3420-BX-506 HIGH GRADE REGRIND MILL FEED PUMPBOX NO.2 3420-WF-1676-C1A-3"-N ES 3420-WG-1054-C1A-2"-N 3420-AP-1255-C1A-1/2"-N 3420-SL-1785-C1B-1-1/2"-N 3420-SL-1211-C1B-10"-N SIZE: MATERIAL: MOTOR: C2-3420-PP-521 HIGH GRADE REGRIND MILL NO.2 FEED PUMP (AFD) SIZE: VTM 1500 MATERIAL: MOTOR: 1120.00 kW C2-3420-ML-504 HIGH GRADE REGRIND MILL NO.2 ES 3420-SL-1208-R1A-24"-N ES ES 3420-SL-1210-R1A-26"-N D 4 F B A 3 2 1 5 6 8 E 7 C REV. APPROVED CHK. DES. REV. DATE REVISION DESCRIPTION CLIENT LEAD ENGINEER SCALE DRAWING NUMBER CHECK DESIGN CHECK DRAWING DESIGNED BY DRAWN BY APPROVAL DATE APPROVAL DATE APPROVED CHK. DES. REV. DATE REVISION DESCRIPTION REFERENCE DRAWING No. 1:100 0 1:200 5m 10m 0 5m 10m 15m 20m 1:500 10m 0 20m 30m 40m 50m 1:1000 0 100m 50m 1:20 0 0.5m 1m 1.5m 2m 0 1:25 0.5m 1m 1.5m 1:33 1/3 2.5m 2m 0 1m 2m 3m 0 1:50 1m 2m 3m 4m 5m CAD FILE NAME: P:0CAD000SPEM** MODEL UPDATED: DWG. FILE UPDATED: MANUAL CHANGES MADE: YES NO YES NO YES NO PROJECT MANAGER ENGINEERING MANAGER AREA PROJECT ENGINEER REFERENCE DRAWINGS SAFETY SHARE: APPROVAL DATE CONTRACT NO. SAFETY SHARE : BA6CVA1.IGR NOTICE: THIS DRAWING HAS NOT BEEN PUBLISHED AND IS THE SOLE PROPERTY OF FLUOR AND IS LENT TO THE BORROWER FOR THEIR CONFIDENTIAL USE ONLY, AND IN CONSIDERATION OF THE LOAN OF THIS DRAWING, THE BORROWER PROMISES AND AGREES TO RETURN IT UPON REQUEST AND AGREES THAT IT WILL NOT BE REPRODUCED, COPIED LENT OR OTHERWISE DISPOSED OF DIRECTLY OR INDIRECTLY, NOR USED FOR ANY OTHER PURPOSE OTHER THAN WHICH IT IS FURNISHED. NONE Apr 2011 240K-C2- 3420-SL-1202-R1A-14"-N 3420-SL-1209-R1A-16"-N 3420-SL-1212-R1A-6"-N FC C2-3420-BX-502 PRODUCT V1 M 3420 02407 B HS OP/CL OP/CL L/R OP/CL 3420 02417 B HS L/R V3 V3 M ES ES NOTES: 1. PUMPBOX OUTLETS HAVE REMOVABLE WEAR INSERTS 2. 10" SQUARE UNLOAD PORT 3. BALL ADDITION POINT NOTE 3
  • 154.
    D 4 F B A 3 2 1 5 68 E 7 C REV. APPROVED CHK. DES. REV. DATE REVISION DESCRIPTION CLIENT LEAD ENGINEER SCALE DRAWING NUMBER CHECK DESIGN CHECK DRAWING DESIGNED BY DRAWN BY APPROVAL DATE APPROVAL DATE APPROVED CHK. DES. REV. DATE REVISION DESCRIPTION REFERENCE DRAWING No. 1:100 0 1:200 5m 10m 0 5m 10m 15m 20m 1:500 10m 0 20m 30m 40m 50m 1:1000 0 100m 50m 1:20 0 0.5m 1m 1.5m 2m 0 1:25 0.5m 1m 1.5m 1:33 1/3 2.5m 2m 0 1m 2m 3m 0 1:50 1m 2m 3m 4m 5m CAD FILE NAME: P:0CAD000SPEM** MODEL UPDATED: DWG. FILE UPDATED: MANUAL CHANGES MADE: YES NO YES NO YES NO PROJECT MANAGER ENGINEERING MANAGER AREA PROJECT ENGINEER REFERENCE DRAWINGS SAFETY SHARE: APPROVAL DATE CONTRACT NO. SAFETY SHARE : BA6CVA1.IGR NOTICE: THIS DRAWING HAS NOT BEEN PUBLISHED AND IS THE SOLE PROPERTY OF FLUOR AND IS LENT TO THE BORROWER FOR THEIR CONFIDENTIAL USE ONLY, AND IN CONSIDERATION OF THE LOAN OF THIS DRAWING, THE BORROWER PROMISES AND AGREES TO RETURN IT UPON REQUEST AND AGREES THAT IT WILL NOT BE REPRODUCED, COPIED LENT OR OTHERWISE DISPOSED OF DIRECTLY OR INDIRECTLY, NOR USED FOR ANY OTHER PURPOSE OTHER THAN WHICH IT IS FURNISHED. NONE Apr 2011 240K-C2- 3420 02512 XV + FI V1 MIN TO FLOOR TO FLOOR SUMP T3 1"x1-1/4" 3420 02515 PI 3420 02514 FI 3420 02515 PIT 3420 02514 FIT M L, P2 LL, P1 L, P2 3420 02514 FE + ES 3"x1" 3"x2" T3 2"x1-1/4" 3420 02505 PI 3420 02504 FI 3420 02505 PIT 3420 02504 FIT M L, P2 LL, P1 L, P2 3420 02504 FE + ES 3"x2" 3"x1-1/2" 3420 02507 XV + FI 3420 02517 XV + FI MIN MIN 3420 02518 XV + FI TO FLOOR 3420 02506 PI 3420 02582 II 3420 02582 XA 3420 02582 HS J/SP AFD 3420 02508 XV + FI MIN 3420 02581 II 3420 02581 XA 3420 02581 HS J/SP AFD 3420 02502 WQI 3420 02502 FY 3420 02502 DIC 3420 02502 FI 3420 02502 FIT 3420 02502 DIT 3420 02502 DE M 3420 02513 PI 3420 02502 DX ES 3420 02502 FE + 3420 02510 LIC 3420 02510 LT 3420 02510 LE 3420 02510 A LI P.O NO.: VENDOR DWG NO.: VENDOR: 3420 02501 FIC M 3420 02501 FIT ES 3420 02501 FE + 3420 02501 FV + BU BU 6"x4" 6"x4" MULTIPLEXER PSA 12" 1/2" BA 1-1/2" PL 1-1/2" PL 1-1/2" PL 1-1/2" PL 1-1/2" PL 2"x1" V V V C2-3420-SA-542 C2-3420-SA-541 C2-3420-AZ-500 C2-3420-PP-536 C2-3420-PP-535 C2-3420-BX-503 C2-3420-SA-543 TO FLOOR 3420-WR-1276-C1A-6"-N 24"x12" 24"x12" H/G REGRIND CYCLONE O/F H/G REGRIND CYCLONE CLUSTER, C2-3420-CS-505 2187 3400-25J-022 COLUMN FEED COLUMN CELL FEED DISTRIBUTOR, C2-3430-DI-503 2194 3400-25J-033 L/G REGRIND CYCLONE O/F L/G REGRIND CYCLONE CLUSTER, C2-3420-CS-506 2467 3400-25J-026 FRESH WATER 2472 5100-25J-014 PROCESS WATER 2476 3900-25J-014 COLUMN FEED COL. TAILING COLLECTION PUMPBOX, C2-3430-BX-511 2479 3400-25J-043 COLUMN FEED COLUMN FEED/ TAILING ANALYZER, C2-3430-AZ-506 2481 3400-25J-042 SIZE: C2-3420-SA-542 LOW GRADE REGRIND CYCLONE OVERFLOW SAMPLER SIZE: C2-3420-SA-541 HIGH GRADE REGRIND MILL PRODUCT SAMPLER SIZE: MATERIAL: CAPACITY: TRIM: C2-3420-BX-503 COLUMN CELL FEED PUMPBOX NO. 1 SIZE: MATERIAL: MOTOR: C2-3420-PP-535 COLUMN CELL FEED PUMP SIZE: MATERIAL: MOTOR: C2-3420-PP-536 COLUMN CELL FEED PUMP SIZE: C2-3420-SA-543 COMBINED COLUMN FEED SAMPLER NO.1 SIZE: C2-3420-AZ-500 HIGH/LOW GRADE REGRIND PARTICLE SIZE ANALYZER 3420-WG-1097-C1A-1-1/2"-N 3420-SL-1216-R1A-4"-N 3420-WF-1410-C1A-2"-N 3420-SL-1218-R1A-30"-N 3420-SL-1213-R1A-42"-N 3420-SL-1217-R1A-30"-N 3420-WF-1098-C1A-1"-N 3420-SL-1219-R1A-24"-N 3420-SL-1220-R1A-24"-N C1A C1B 3420-SL-1221-C1B-2"-N 3420-SL-1222-R1A-24"-N 3" H, P2 L, P2 LL, P1 AG KM LT ISSUED FOR CLIENT REVIEW 22-Dec-11 B RP ISSUED FOR COMBINED REVIEW 29-Jun-11 A 12/22/2011 K. MUNDY A. GUNSON W. BIE L. TAMELIN 12/22/2011 3:11:29 PM WBS: 3420 B PIPING AND INSTRUMENTATION DIAGRAM REGRIND CIRCUIT 3400-25J-025 COLUMN CELL FEED PUMPS SH. 1 OF 2 3420-SL-1232-R1A-42"-N 3420-SL-1225-R1A-42"-N FAULT FAULT 3420 02512 ZS 3420 02512 XA OP/CL 3420 02517 ZS 3420 02517 XA OP/CL 3420 02507 XA 3420 02507 ZS OP/CL 3420 02508 ZS 3420 02508 XA 3420 02518 XA 3420 02518 ZS MISMATCH MISMATCH MISMATCH MISMATCH GLAND SEAL WATER 3375 3900-25J-023 H/G REGRIND CYCLONE H/G REGRIND CYCLONE FEED PUMPS, C2-3420-PP-503/503 3376 3400-25J-022 3420-WR-1677-C1A-2"-N 3420 02509 XV + 3420 02509 ZS 3420 02509 XA OP/CL MISMATCH 3420 02519 XV + 3420 02519 ZS 3420 02519 XA OP/CL MISMATCH OP/CL FI FI MISMATCH COLUMN FEED COL. CELL FEED PUMPBOX NO. 2, C2-3420-BX-403 3502 3400-25J-032 RSP C2-3420-DI-403 3420 02521 XV + 3420 02521 XA 3420 02521 ZS MISMATCH OP/CL 3420 02522 XA MISMATCH 3420 02522 ZS OP/CL 3420 02522 XV + SIZE:30 m3 C2-3420-DI-403 COLUMN CELL FEED PUMPBOX DISTRIBUTOR 3420-WF-1409-C1A-2"-N 3420-SL-1188-R1B-42"-N 3420-SL-1193-R1A-42"-N 3420-SL-1381-R1A-12"-N 3420-SL-1376-R1A-12"-N 3420-SL-1389-R1A-6"-N 3420-RF-1037-C1D-1"-N 1ST CLEANER CONC. CL. SCAV./ 1ST CL. INSTREAM ANALYZER, C2-3430-AZ-509 2728 3400-25J-053 1ST CLEANER CONC. FIRST CLEANER CONC. SAMPL. NO.2, C2-3410-SA-533 2738 3400-25J-053 1ST CLEANER CONC. FIRST CLEANER CONC. SAMP. NO.1, C2-3410-SA-530 2740 3400-25J-053 3420-SL-1214-R1A-30"-N 3420-WR-1679-C1A-6"-N 3420-SL-1226-R1A-30"-N 3420-SL-1215-C1B C.S. RUBBER LINED 43 M3 FI FI FC MOLY COLLECTOR INJECTOR, C2-3410-ZM-575 2360 3900-25J-003 3420-RC-1087-C1D-1"-N L/G REGRIND CYCL. FEED L/G REGRING CYCLONE FEED PUMPS, C2-3420-PP-524/525 3796 3400-25J-026 3420-SL-1236-R1B-42"-N FEED M M 3420 02507 B HS 3420 02517 B HS OP/CL L/R OP/CL L/R V3 V3 3420 02521 B HS OP/CL L/R M M 3420 02522 B HS OP/CL L/R V3 V3 M M 3420 02509 B HS 3420 02519 B HS V3 V3 OP/CL OP/CL L/R L/R ES ES ES ES ES ES FROTHER ALCOHOL INJECTOR, C2-3910-ZM-687 2364 3900-25J-006 PROCESS WATER 2482 3900-25J-016
  • 155.
    D 4 F B A 3 2 1 5 68 E 7 C REV. APPROVED CHK. DES. REV. DATE REVISION DESCRIPTION CLIENT LEAD ENGINEER SCALE DRAWING NUMBER CHECK DESIGN CHECK DRAWING DESIGNED BY DRAWN BY APPROVAL DATE APPROVAL DATE APPROVED CHK. DES. REV. DATE REVISION DESCRIPTION REFERENCE DRAWING No. 1:100 0 1:200 5m 10m 0 5m 10m 15m 20m 1:500 10m 0 20m 30m 40m 50m 1:1000 0 100m 50m 1:20 0 0.5m 1m 1.5m 2m 0 1:25 0.5m 1m 1.5m 1:33 1/3 2.5m 2m 0 1m 2m 3m 0 1:50 1m 2m 3m 4m 5m CAD FILE NAME: P:0CAD000SPEM** MODEL UPDATED: DWG. FILE UPDATED: MANUAL CHANGES MADE: YES NO YES NO YES NO PROJECT MANAGER ENGINEERING MANAGER AREA PROJECT ENGINEER REFERENCE DRAWINGS SAFETY SHARE: APPROVAL DATE CONTRACT NO. SAFETY SHARE : BA6CVA1.IGR NOTICE: THIS DRAWING HAS NOT BEEN PUBLISHED AND IS THE SOLE PROPERTY OF FLUOR AND IS LENT TO THE BORROWER FOR THEIR CONFIDENTIAL USE ONLY, AND IN CONSIDERATION OF THE LOAN OF THIS DRAWING, THE BORROWER PROMISES AND AGREES TO RETURN IT UPON REQUEST AND AGREES THAT IT WILL NOT BE REPRODUCED, COPIED LENT OR OTHERWISE DISPOSED OF DIRECTLY OR INDIRECTLY, NOR USED FOR ANY OTHER PURPOSE OTHER THAN WHICH IT IS FURNISHED. NONE Apr 2011 240K-C2- 3420 02682 XA FI 3420 02682 II SLOPE L, P2 LL, P1 SP-3400 SP-3400 3420 02621 XV + 3420 02622 XV + 3420 02681 XA 3420 32601 XV + 3420 02681 II T3 T3 3420 02617 XV + 3420 02607 XV + 3420 02612 XV + 3420 02602 FV + 3420 02602 FE + L, P2 3420 02615 PI 3420 02615 PIT TO FLOOR C2-3420-CS-506 MIN MIN C2-3420-DI-502 2"x1" MIN C2-3420-BX-504 C2-3420-PP-524 SLOPE M 3420 02608 XV + TO FLOOR C2-3420-PP-525 1-1/2" MIN FI 1-1/2" MIN FI 28" X 26" RED. FLG. 4"x3" MIN 4"x3" TO FLOOR J/SP AFD J/SP FI MASS FLOW 3420 02618 XV + 1/2" 3420 02604 FE + BRG REAR H, P2 HH, P1 M TO FLOOR VENDOR M 3420 02601 FIT 3420 02601 FIC 3420 02611 PIC 3420 02611 PIT L, P2 LL, P1 3420 02604 FI 3420 02604 FIT 3420 02606 PI H, P2 L, P2 LL, P2 L, P2 3420 02610 LIC 4" 3420 02610 A LI 3420 02610 LT 3420 02605 PI 3420 02610 LE 3420 02605 PIT 3420 02602 FIT 3420 02602 FIC 3420 02614 FI 3420 02614 FIT 1-1/2" 3420 02603 DX 10"x8" 3420 02603 WQI 10"x8" 3420 02603 FY 3420 02603 DIC 3420 02603 FI FI 3420 02603 DIT FI 3420 02603 DE 3420 02603 FIT 3420 02613 PI 1-1/2" 3420 02681 G TE 3420 02681 G TI 3420 02681 H TE BRG FRONT H, P2 HH, P1 3420 02681 H TI M BRG REAR H, P2 HH, P1 3420 02609 XV + BRG FRONT H, P2 HH, P1 3420 02603 FE + 3420 02682 H TI 3420 02601 FV + 3420 02682 G TI M AFD 3420 02682 H TE 3420 02682 G TE 3420 02601 FE + 3420 02682 HS 3420 02614 FE + 3420 02681 HS 3420 02619 XV + SLOPE C2-3420-LA-500 SIZE: C2-3420-LA-500 LOW GRADE REGRIND CYCLONE UNDERFLOW LAUNDER REGRIND MILL PRODUCT L/G REGRIND MILL NO.2, C2-3420-ML-506 2401 3400-25J-031 REG. AREA SUMP CONT. REGRIND AREA SPILLAGE PUMP, C2-3420-PP-531 2402 3400-25J-031 L/G REGRIND CYCLONE U/F L/G REGRIND MILL NO.1 FEED PUMPBOX, C2-3420-BX-510 2400 3400-25J-031 L/G REGRIND CYCLONE U/F L/G REGRIND MILL NO.2 FEED PUMPBOX, C2-3420-BX-513 2392 3400-25J-027 REGRIND MILL PRODUCT L/G REGRIND MILL NO.1, C2-3420-ML-505 2395 3400-25J-027 MOLY COLLECTOR INJECTOR C2-3910-ZM-574 2359 3900-25J-003 SCAV. CONCENTRATE SCAVENGER CONCENTRATE PIPE LAUNDER 1430 3400-25J-005 3420-RC-1020-C1D-1"-N L/G REGRIND CYCLONE O/F L/G REGRIND CYCLONE O/F SAMPLER, C2-3420-SA-542 2467 3400-25J-025 C2-3420-SA-542 3420-WG-1053-C1A-2"-N ES ES ES 3420-SL-1228-R1A-48"-N SIZE: C2-3420-DI-502 LOW GRADE REGRIND FEED DISTRIBUTOR ES SIZE: MATERIAL: MOTOR: C2-3420-PP-524 LOW GRADE REGRIND CYCLONE FEED PUMPS 3420-SL-1233-R1B-28"-N 3420-SL-1234-R1B-20"-N ES SIZE: MATERIAL: CAPACITY: TRIM: C2-3420-BX-504 SCAVENGER CONCENTRATE COLLECTION PUMP BOX 3420-SL-1250-C1A-20"-N 3420-SL-1244-R1A-20"-N 3420-SL-1232-R1A-42"-N 3420-SL-1124-R1A-30"-N 3420-WR-1274-C1A-4"-N 3420-SL-1229-R1A-48"-N 3420-SL-1384-R1A-12"-N SIZE:13 x 508 mm C2-3420-CS-506 LOW GRADE REGRIND CIRCUIT CYCLONE CLUSTER 3420-SL-1231-R1B-42"-N 3420-SL-1230-R1B-42"-N 3420-SL-1235-R1B-20"-N 3420-WR-1274-C1A-4"-N 3420-RC-1088-C1D-1"-N SIZE: MATERIAL: MOTOR: C2-3420-PP-525 LOW GRADE REGRIND CYCLONE FEED PUMPS 3420-WG-1058-C1A-1"-N 3420-WR-1680-C1A-10"-N AG KM LT ISSUED FOR CLIENT REVIEW 22-Dec-11 B RP ISSUED FOR COMBINED REVIEW 29-Jun-11 A 12/22/2011 K. MUNDY A. GUNSON W. BIE L. TAMELIN 12/22/2011 10:19:17 AM WBS: 3420 B PIPING AND INSTRUMENTATION DIAGRAM REGRIND CIRCUIT 3400-25J-026 LOW GRADE REGRIND CYCLONES 3420 02612 XA 3420 02612 ZS 3420 02617 ZS 3420 02617 XA OP/CL 3420 02607 ZS 3420 02607 XA OP/CL 3420 02608 ZS 3420 02608 XA OP/CL 3420 02609 ZS 3420 02609 XA 3420 32601 ZS 3420 32601 XA 3420 02622 ZS 3420 02621 ZS 3420 02622 XA 3420 02621 XA OP/CL OP/CL 3420 02619 XA 3420 02619 ZS FAULT FAULT 3420 02618 ZS 3420 02618 XA OP/CL OP/CL OP/CL OP/CL MISMATCH MISMATCH MISMATCH MISMATCH MISMATCH MISMATCH MISMATCH MISMATCH MISMATCH A-N A-N MISMATCH A-N OP/CL GLAND SEAL WATER 2957 3900-25J-023 PSP V V V V V V V V V V ES ES FI PRIMARY COLLECTOR INJECTOR C2-3910-ZM-596 2351 3900-25J-001 CLEANER SCAV. CONC. CLEANER SCAV. CONC. SAMPLER, C2-3430-SA-532 2739 3400-25J-053 CLEANER SCAV. CONC. CL. SCAV. CONC. SAMPLER NO.1, C2-3430-SA-532 2741 3400-25J-053 CLEANER SCAV. CONC. CL. SCAV./ 1ST CL. INSTREAM ANALYZER, C2-3430-AZ-509 2729 3400-25J-053 CLEANER SCAV. CONC. CL. SCAV./ 1ST CL. INSTREAM ANALYZER, C2-3430-AZ-509 2727 3400-25J-053 3420-SL-1252-R1A-6"-N 3420-SL-1388-R1A-6"-N 3420-SL-1390-R1A-6"-N 3420-SL-1377-R1A-12"-N 3420-WR-1681-C1A-10"-N FI FI FI FC FC PROCESS WATER 2468 3900-25J-016 L/G REGRIND CYCLONE O/F L/G REGRIND CYCLONE O/F SAMPLER, C2-3420-SA-542 3796 3400-25J-025 3420 02623 XA MISMATCH 3420 02623 ZS OP/CL 3420 02620 ZS 3420 02620 XA MISMATCH OP/CL FI 3420 02620 XV + 3420 02623 XV + FI 3420-SL-1236-R1B-42"-N C2-3420-SA-542 H/G REGRIND CYCLONE U/F H/G REGRING CYCLONE U/F LAUNDER, C2-3420-LA-502 3387 3400-25J-022 3420 02625 XV + FI 3420 02625 XA MISMATCH 3420 02625 ZS OP/CL 3420-SL- -R1B-22"-N PROCESS WATER 2466 3900-25J-016 L/G REGRIND CYCLONE U/F ROUGHER CONC. COLLECTION PUMPBOX, 3813 3400-25J-022 C2-3420-BX-502 3420 32602 PI M 3420 32601 B HS OP/CL L/R M 3420 02620 B HS OP/CL L/R V3 V3 M M 3420 02619 B HS OP/CL L/R V3 3420 02609 B HS OP/CL L/R V3 M M 3420 02617 B HS OP/CL L/R 3420 02607 B HS OP/CL L/R V3 V3 ES ES ES ES ES ES M ES V3 3420 02625 B HS OP/CL L/R NOTE 1 3420-SL-1233-R1B-28"-N NOTES: 1. PUMPBOX OUTLETS HAVE REMOVABLE WEAR INSERTS 2. BYPASS ARRANGEMENTS TO BE DEFINED NOTE 2
  • 156.
    T3 T3 SHAFT BEARING AUTO GREASESYSTEM V 3420 02782 HS J/SP 3420 02782 XA 3420 02782 II 3420 02705 PIT M 3420 02704 FI 3420 02705 PI L, P2 3420 02704 FIT 3420 02721 ZS 3420 02721 XA 3420 02701 FIC RSP 3420 02715 PI 3420 02702 FIT 3420 02783 G TI 3420 32882 II 3420 32801 A FI 3420 02702 WQI MASS FLOW M CCTV 3420 02783 II 3420 32882 XA M 3420 02703 YT 3420 02783 H TI BRG REAR H, P2 HH, P1 3420 02714 FI L, P2 LL, P1 3420 02714 FIT 3420 02710 LE 3420 02781 HS 3420 32881 II 3420 02702 DIC 3420 02783 H TE 3420 02702 FI 3420 02713 PI 3420 02702 DE 3420 02703 YI 3420 02783 XA FAULT 3420 02710 LT 3420 32881 XA FAULT 3420 02701 FIT 3420 02783 HS 3420 32881 HS J/SP 3420 02710 LIC M 3420 02781 XA FAULT AFD 3420 02702 DIT 3420 32901 A PDAH 3420 02710 A LI 3420 02702 FY 3420 02715 PIT 3420 02783 G TE 3420 32901 B PDAH 3420 32882 HS 3420 02781 II 3420 32801 B FI L, P2 LL, P1 L, P2 LL, P1 3420 02702 DX 3420 02708 ZS 3420 02708 XA 3420 02712 ZS OP/CL 3420 02712 XA 3420 02707 ZS OP/CL 3420 02707 XA MISMATCH 3420 02717 ZS 3420 02718 ZS 3420 02718 XA MISMATCH 3420 02719 XA 3420 02719 ZS 3420 02717 XA 3420 02716 ZS 3420 02706 XA 3420 02716 XA 3420 02709 ZS 3420 02706 ZS 3420 02720 ZS 3420 02709 XA MISMATCH 3420 02720 XA TO FLOOR GLAND SEAL WATER 2958 3900-25J-023 L/G REGRIND CYCLONE U/F L/G REGRIND FEED DISTRIBUTOR, C2-3420-DI-502 2392 3400-25J-026 L/G REGRIND MILL SCAV. CONC. COLLECTION PUMPBOX, C2-3420-BX-504 2395 3400-25J-026 PLANT AIR 2396 3900-25J-021 L/G REGRIND CYCLONE U/F H/G REGRIND FEED DISTRIBUTOR, C2-3420-DI-501 3389 3400-25J-022 L/G REGRIND CYCLONE U/F L/G REGRIND MILL NO.2, C2-3420-ML-506 2820 3400-25J-031 L/G REGRIND CYCLONE U/F L/G REGRIND MILL FEED PUMPBOX, C2-3420-BX-510 2821 3400-25J-031 MISMATCH L, P2 LL, P1 P2 REDUCER LUBE SYSTEM LUBE OIL P2 VENDOR PUMP MIN BRG FRONT H, P2 HH, P1 LUBE OIL NOTE 1 TO FLOOR MIN L, P2 J/SP TO FLOOR J/SP SLOPE FAULT COOLING FAN TO FLOOR NOTE 2 J/SP TO FLOOR OP/CL OP/CL OP/CL OP/CL OP/CL FAULT MISMATCH MISMATCH AFD MISMATCH MISMATCH MISMATCH MISMATCH MISMATCH 3420 02717 XV + 3420 02719 XV + C2-3420-PP-530 ES 3420 02704 FE + 3420 02707 XV + 3420 02720 XV + 3420 02709 XV + V V FI FI FI FI FI FL FI 24"x14" FI 1-1/2" 3420 02718 XV + 3420-WG-1052-C1A-2"-N 1-1/2" 3420-WG-1682-C1A-3"-N SIZE:13 m3 MATERIAL: CAPACITY: TRIM:3420-SL-1237-C1B-N C2-3420-BX-513 LOW GRADE REGRIND MILL FEED PUMPBOX NO.1 3420-SL-1244-R1A-20"-N 3420 02712 XV + 1/2"x1/4" 3420 02702 FE + 3420-WR-1272-C1A-4"-N 3420-SL-1243-C1B-10"-N 24"x14" FI SIZE: MATERIAL: MOTOR: C2-3420-PP-526 LOW GRADE REGRIND MILL NO.1 FEED PUMP C2-3420-BX-513 3420-SL-1238-R1A-24"-N 10"x16" C2-3420-PP-526 3420 02701 FV + SIZE:10 t MATERIAL: CAPACITY: TRIM: C2-3420-BN-511 TO 514 BALL BUCKET SIZE: VTM 1500 MATERIAL: MOTOR: 1120.00 kW C2-3420-ML-505 LOW GRADE REGRIND MILL NO.1 FI 4"x1-1/2" 3420 02716 XV + C2-3420-ML-505 3420-AP-1256-C1A-1/2"-N 3420-SL-1235-R1B-20"-N 3420 02706 XV + FI 3420-SL-1242-R1A-16"-N 1-1/2" C2-3420-BN-511 TO 514 3420 02701 FE + V 3420 02714 FE + 3420 02708 XV + 1-1/2" SIZE: MATERIAL: MOTOR: C2-3420-PP-530 LOW GRADE REGRIND MILL FEED PUMP 3420 02721 XV + C2-3420-LU-504 C2-3420-LU-505 C2-3420-LU-506 C2-3420-LU-507 SIZE: C2-3420-LU-504 HIGH GRADE REGRIND MILL NO 1 LUBE SET RESERVOIR MODULE SIZE: C2-3420-LU-505 HIGH GRADE REGRIND MILL NO 2 LUBE SET RESERVOIR MODULE SIZE: C2-3420-LU-506 LOW GRADE REGRIND MILL NO 1 LUBE SET RESERVOIR MODULE SIZE: C2-3420-LU-507 LOW GRADE REGRIND MILL NO 2 LUBE SET RESERVOIR MODULE AG KM LT ISSUED FOR CLIENT REVIEW 22-Dec-11 B RP ISSUED FOR COMBINED REVIEW 29-Jun-11 A 12/22/2011 K. MUNDY A. GUNSON W. BIE L. TAMELIN 12/21/2011 5:58:25 PM WBS: 3420 B PIPING AND INSTRUMENTATION DIAGRAM REGRIND CIRCUIT 3400-25J-027 LOW GRADE REGRIND MILL NO. 1 ES ES ES ES ES ES D 4 F B A 3 2 1 5 6 8 E 7 C REV. APPROVED CHK. DES. REV. DATE REVISION DESCRIPTION CLIENT LEAD ENGINEER SCALE DRAWING NUMBER CHECK DESIGN CHECK DRAWING DESIGNED BY DRAWN BY APPROVAL DATE APPROVAL DATE APPROVED CHK. DES. REV. DATE REVISION DESCRIPTION REFERENCE DRAWING No. 1:100 0 1:200 5m 10m 0 5m 10m 15m 20m 1:500 10m 0 20m 30m 40m 50m 1:1000 0 100m 50m 1:20 0 0.5m 1m 1.5m 2m 0 1:25 0.5m 1m 1.5m 1:33 1/3 2.5m 2m 0 1m 2m 3m 0 1:50 1m 2m 3m 4m 5m CAD FILE NAME: P:0CAD000SPEM** MODEL UPDATED: DWG. FILE UPDATED: MANUAL CHANGES MADE: YES NO YES NO YES NO PROJECT MANAGER ENGINEERING MANAGER AREA PROJECT ENGINEER REFERENCE DRAWINGS SAFETY SHARE: APPROVAL DATE CONTRACT NO. SAFETY SHARE : BA6CVA1.IGR NOTICE: THIS DRAWING HAS NOT BEEN PUBLISHED AND IS THE SOLE PROPERTY OF FLUOR AND IS LENT TO THE BORROWER FOR THEIR CONFIDENTIAL USE ONLY, AND IN CONSIDERATION OF THE LOAN OF THIS DRAWING, THE BORROWER PROMISES AND AGREES TO RETURN IT UPON REQUEST AND AGREES THAT IT WILL NOT BE REPRODUCED, COPIED LENT OR OTHERWISE DISPOSED OF DIRECTLY OR INDIRECTLY, NOR USED FOR ANY OTHER PURPOSE OTHER THAN WHICH IT IS FURNISHED. NONE Apr 2011 240K-C2- V1 3420-SL-1239-R1A-24"-N 3420-SL-1240-R1A-16"-N 3420-SL-1786-C1B-1-1/2"-N 3420-SL-1247-R1A-16"-N 3420-WG-1057-C1A-1"-N 3420-SL-1241-R1A-16"-N FC REGRIND AREA SPILLAGE 3794 3400-25J-032 3420-SL-1205-C1B-6"-N PROCESS WATER 2397 3900-25J-016 PRODUCT M M 3420 02707 B HS OP/CL L/R 3420 02717 B HS V3 V3 ES ES NOTES: 1. PUMPBOX OUTLETS HAVE REMOVABLE WEAR INSERTS 2. 10" SQUARE UNLOAD PORT 3. BALL ADDITION POINT NOTE 3 3420-SL- -R1A-16"-N
  • 157.
    D 4 F B A 3 2 1 5 68 E 7 C REV. APPROVED CHK. DES. REV. DATE REVISION DESCRIPTION CLIENT LEAD ENGINEER SCALE DRAWING NUMBER CHECK DESIGN CHECK DRAWING DESIGNED BY DRAWN BY APPROVAL DATE APPROVAL DATE APPROVED CHK. DES. REV. DATE REVISION DESCRIPTION REFERENCE DRAWING No. 1:100 0 1:200 5m 10m 0 5m 10m 15m 20m 1:500 10m 0 20m 30m 40m 50m 1:1000 0 100m 50m 1:20 0 0.5m 1m 1.5m 2m 0 1:25 0.5m 1m 1.5m 1:33 1/3 2.5m 2m 0 1m 2m 3m 0 1:50 1m 2m 3m 4m 5m CAD FILE NAME: P:0CAD000SPEM** MODEL UPDATED: DWG. FILE UPDATED: MANUAL CHANGES MADE: YES NO YES NO YES NO PROJECT MANAGER ENGINEERING MANAGER AREA PROJECT ENGINEER REFERENCE DRAWINGS SAFETY SHARE: APPROVAL DATE CONTRACT NO. SAFETY SHARE : BA6CVA1.IGR NOTICE: THIS DRAWING HAS NOT BEEN PUBLISHED AND IS THE SOLE PROPERTY OF FLUOR AND IS LENT TO THE BORROWER FOR THEIR CONFIDENTIAL USE ONLY, AND IN CONSIDERATION OF THE LOAN OF THIS DRAWING, THE BORROWER PROMISES AND AGREES TO RETURN IT UPON REQUEST AND AGREES THAT IT WILL NOT BE REPRODUCED, COPIED LENT OR OTHERWISE DISPOSED OF DIRECTLY OR INDIRECTLY, NOR USED FOR ANY OTHER PURPOSE OTHER THAN WHICH IT IS FURNISHED. NONE Apr 2011 240K-C2- M TO FLOOR 3420 03102 FI 3420 03101 FIC 1-1/2" 4"x1-1/2" 3420 03103 YT J/SP 3420 03110 LE 3420 03102 FE + AFD 3420 03102 FY 3420 03110 LT 3420 03114 FE + TO FLOOR 3420 03103 YI L, P2 LL, P1 3420 03110 LI SLOPE 3420 03114 FIT 3420 03102 WQI J/SP 3420 03110 LIC FI L, P2 J/SP 3420 03115 PI C2-3420-BX-510 3420 03102 DIC FAULT 3420 03114 FI C2-3420-PP-527 FAULT BRG FRONT H, P2 HH, P1 3420 03183 G TE 3420 03113 PI C2-3420-ML-506 CCTV 3420 03102 DX J/SP 3420 03183 H TE C2-3420-BN-515 TO 517 3420 03102 DE LUBE OIL 3420 03183 G TI 3420 03102 DIT 3420 03112 XV + PUMP 3420 03102 FIT 3420 03183 H TI M MASS FLOW REDUCER LUBE SYSTEM BRG REAR H, P2 HH, P1 3420 03101 FV + V 3420 03183 HS 3420 33001 B FI 3420 33001 A FI 3420 33101 A PDAH 3420 03101 FE + TO FLOOR V 3420 33101 B PDAH FI SIZE: MATERIAL: MOTOR: C2-3420-PP-531 REGRIND AREA SPILLAGE PUMP C2-3420-PP-531 3420 03118 XV + P2 T8 MIN 1/2"x1/4" LUBE OIL P2 3420 03181 HS 3420 33081 HS COOLING FAN SHAFT BEARING AUTO GREASE SYSTEM 3420 33082 HS 3420 03181 XA 3420 33082 II 3420 03183 II L, P2 LL, P1 3420 33082 XA VENDOR NOTE 1 3420 03116 XV + 3420 03181 II 3420 33081 II 3420 03183 XA NOTE 2 TO FLOOR L, P2 LL, P1 3420 33081 XA FI 3420 03106 XV + 1-1/2" MIN 24"x14" M T3 1-1/2" 3420 03115 PIT FI 10"x16" 3420 03101 FIT L/G REGRIND CYCLONE U/F L/G REGRIND FEED DISTRIBUTOR, C2-3420-DI-502 2400 3400-25J-026 L/G REGRIND MILL SCAV. CONC. COLLECTION PUMPBOX, C2-3420-BX-504 2401 3400-25J-026 REG. AREA SUMP CONTETS SCAV. CONC. COLLECTION PUMPBOX, C2-3420-BX-504 2402 3400-25J-026 PLANT AIR 2403 3900-25J-021 3420 03104 LE 3420 03104 LIT 3420 03104 LI 3420 03182 HS 3420 03182 II 3420 03182 XA J/SP SIZE:10 t MATERIAL: CAPACITY: TRIM: C2-3420-BN-515 TO 517 BALL BUCKET ES 3420-AP-1257-C1A-1/2"-N 3420-SL-1234-R1B-20"-N SIZE: VTM 1500 MATERIAL: MOTOR: 1120.00 kW C2-3420-ML-506 LOW GRADE REGRIND MILL NO.2 3420-SL-1248-R1A-24"-N 3420-SL-1787-C1B-1-1/2"-N 3420-SL-1251-C1B-10"-N ES ES ES SIZE: MATERIAL: MOTOR: C2-3420-PP-527 LOW GRADE REGRIND MILL NO.2 FEED PUMP (AFD) 3420-WR-1273-C1A-4"-N ES 3420-WF-1683-C1A-3"-N 3420-WG-1051-C1A-2"-N ES SIZE:13 m3 MATERIAL: CAPACITY: TRIM: 3420-SL-1246-C1B-N C2-3420-BX-510 LOW GRADE REGRIND MILL FEED PUMPBOX NO.2 3420-SL-1250-R1A-20"-N AG KM LT ISSUED FOR CLIENT REVIEW 22-Dec-11 B RP ISSUED FOR COMBINED REVIEW 29-Jun-11 A 12/22/2011 K. MUNDY A. GUNSON W. BIE L. TAMELIN 12/21/2011 6:00:39 PM WBS: 3420 B PIPING AND INSTRUMENTATION DIAGRAM REGRIND CIRCUIT 3400-25J-031 LOW GRADE REGRIND MILL NO. 2 H, P2 L, P2 LL, P1 L/G REGRIND CYCLONE U/F L/G REGRIND MILL FEED PUMP, C2-3420-PP-530 2820 3400-25J-027 3420-SL-1242-R1A-16"-N L/G REGRIND CYCLONE U/F L/G REGRIND MILL FEED PUMP, C2-3420-PP-530 2821 3400-25J-027 3420 03107 XV + 3420 03119 XV + 3420 03117 XV + 3420 03112 ZS 3420 03112 XA 3420 03107 XA 3420 03107 ZS 3420 03117 XA 3420 03118 XA 3420 03117 ZS 3420 03118 ZS 3420 03119 ZS 3420 03119 XA OP/CL OP/CL OP/CL OP/CL OP/CL FAULT 3420 03106 ZS 3420 03106 XA 3420 03116 XA 3420 03116 ZS FAULT FAULT OP/CL OP/CL MISMATCH MISMATCH MISMATCH MISMATCH MISMATCH MISMATCH MISMATCH GLAND SEAL WATER 3391 3900-25J-023 C2-3420-BN-047 SIZE:10 t C2-3420-BN-047 BALL BIN RSP V V FI FI FL 3420-SL-1247-R1A-24"-N 3420-SL-1249-R1A-16"-N 3420-SL-1252-R1A-6"-N FC PROCESS WATER 2404 3900-25J-016 PRODUCT M 3420 03107 B HS OP/CL L/R M 3420 03117 B HS OP/CL L/R ES ES NOTES: 1. PUMPBOX OUTLETS HAVE REMOVABLE WEAR INSERTS 2. 10" SQUARE UNLOAD PORT 3. BALL ADDITION POINT NOTE 3
  • 158.
    T3 T3 3420 03207 XA 3420 03201 WQI 3420 03205 PI M 3420 03281 HS J/SP 3420 03218 ZS TO FLOOR 3420 03281 II 3420 03201 DX 3420 03217 XA 3420 03215 PIT 3420 03217 ZS OP/CL 3420 03214 FI 3420 03209 ZS 3420 03219 XA 3420 03209 XA 3420 03201 DIT 3420 03213 PI 3420 03218 XA MISMATCH 3420 03219 ZS 3420 03201 DE 3420 03203 PI M 3420 03215 PI M 3420 03214 FIT 3420 03281 XA FAULT 3420 03208 XA 3420 03282 HS J/SP 3420 03204 FI 3420 03201 B FIT 3420 03204 FIT 3420 03201 FI 3420 03208 ZS 3420 03205 PIT 3420 03282 XA 3420 03207 ZS OP/CL 3420 03282 II FAULT 3420 03201 DIC 3420 03201 FY 3420 03210A LI 3420 03210 LIC 3420 03201 A FIT 3420 03201 FIC HH,P1 H, P2 L, P2 LL,P1 3420 03210 LT 3420 03212 ZS OP/CL 3420 03210 LE M 3420 03212 XA COLUMN FEED COLUMN FEED/TAILING ANALYZER, C2-3430-AZ-506 3384 3400-25J-043 PROCESS WATER 3506 3900-25J-014 COLUMN FEED COLUMN CELL FEED DISTRIBUTOR, C2-3430-DI-504 3385 3400-25J-035 GLAND SEAL WATER 3504 3900-25J-023 COLUMN FEED COLUMN FEED DISTRIBUTOR, C2-3420-DI-503 3502 3400-25J-025 MIN L, P2 LL, P1 L, P2 LL, P1 AFD OP/CL MISMATCH OP/CL C1A C1B MISMATCH L, P2 MISMATCH AFD TO FLOOR OP/CL L, P2 MISMATCH MISMATCH MIN 12" O/F RSP TO FLOOR TO FLOOR MISMATCH FI FI C2-3420-BX-403 3420 03219 XV + 3420 03201 B FE + SIZE: C2-3420-SA-544 COMBINED COLUMN FEED SAMPLER NO.2 AG KM LT ISSUED FOR CLIENT REVIEW 22-Dec-11 B NOT USED A 12/22/2011 K. MUNDY A. GUNSON W. BIE L. TAMELIN 12/20/2011 7:16:46 PM WBS: 3420 B PIPING AND INSTRUMENTATION DIAGRAM REGRIND CIRCUIT 3400-25J-032 COLUMN CELL FEED PUMPS SH. 2 OF 2 V 3"x2" 3"x1-1/2" V 2"x1-1/4" SIZE: MATERIAL: MOTOR: C2-3420-PP-522 COLUMN CELL FEED PUMP 2"x1" 1"x1-1/4" SIZE: MATERIAL: MOTOR: C2-3420-PP-523 COLUMN CELL FEED PUMP 24"x12" 3420 03208 XV + 1-1/2" PL ES 1-1/2" PL 1-1/2" PL 1-1/2" PL 1-1/2" PL 24"x12" FI 3420 03204 FE + 3" 3420-SL-1224-R1A-24"-N 3"x2" 3420-SL-1223-C1B-2"-N 3"x1" 3420-SL-1824-R1A-24"-N C2-3420-SA-544 3420-WG-1069-C1A-1-1/2"-N C2-3420-PP-522 FI 3420 03217 XV + 3420-SL-1822-R1A-30"-N 1/2" BA C2-3420-PP-523 3420 03209 XV + FI 3420 03214 FE + 3420 03207 XV + 3420-SL-1823-R1A-24"-N ES ES 3420-WG-1070-C1A-1"-N 3420-SL-1821-R1A-30"-N FI 3420 03218 XV + V ES 3420 03212 XV + FI 3420 03201 A FE + 3420 03201 FV + 3420-WR-2016-C1A-6"-N SIZE: MATERIAL: CAPACITY: TRIM: C2-3420-BX-403 COLUMN CELL FEED PUMPBOX NO. 2 3420-WR-2017-C1A-6"-N 3420-SL-1214-R1A-30"-N D 4 F B A 3 2 1 5 6 8 E 7 C REV. APPROVED CHK. DES. REV. DATE REVISION DESCRIPTION CLIENT LEAD ENGINEER SCALE DRAWING NUMBER CHECK DESIGN CHECK DRAWING DESIGNED BY DRAWN BY APPROVAL DATE APPROVAL DATE APPROVED CHK. DES. REV. DATE REVISION DESCRIPTION REFERENCE DRAWING No. 1:100 0 1:200 5m 10m 0 5m 10m 15m 20m 1:500 10m 0 20m 30m 40m 50m 1:1000 0 100m 50m 1:20 0 0.5m 1m 1.5m 2m 0 1:25 0.5m 1m 1.5m 1:33 1/3 2.5m 2m 0 1m 2m 3m 0 1:50 1m 2m 3m 4m 5m CAD FILE NAME: P:0CAD000SPEM** MODEL UPDATED: DWG. FILE UPDATED: MANUAL CHANGES MADE: YES NO YES NO YES NO PROJECT MANAGER ENGINEERING MANAGER AREA PROJECT ENGINEER REFERENCE DRAWINGS SAFETY SHARE: APPROVAL DATE CONTRACT NO. SAFETY SHARE : BA6CVA1.IGR NOTICE: THIS DRAWING HAS NOT BEEN PUBLISHED AND IS THE SOLE PROPERTY OF FLUOR AND IS LENT TO THE BORROWER FOR THEIR CONFIDENTIAL USE ONLY, AND IN CONSIDERATION OF THE LOAN OF THIS DRAWING, THE BORROWER PROMISES AND AGREES TO RETURN IT UPON REQUEST AND AGREES THAT IT WILL NOT BE REPRODUCED, COPIED LENT OR OTHERWISE DISPOSED OF DIRECTLY OR INDIRECTLY, NOR USED FOR ANY OTHER PURPOSE OTHER THAN WHICH IT IS FURNISHED. NONE Apr 2011 240K-C2- 3420 03221 LE 3420 03221 LIT 3420 03221 LI 3420 03284 HS 3420 03284 II 3420 03284 XA J/SP H, P2 HH, P1 L,P2 FAULT T8 3420 03283 HS 3420 03283 II 3420 03283 XA J/SP FAULT T8 REGRIND AREA SUMP REGRIND AREA CONTAINMENT O/F 3794 3400-25J-027 COL. FLOT. AREA SUMP COLUMN FLOTATION AREA CONTAINMENT 3795 3400-25J-033 REGRIND O/F SUMP ROUGHER CONCENTRATE COLLECTION PUMPBOX, 3808 3400-25J-022 REGRIND O/F SUMP ROUGHER CONCENTRATE COLLECTION PUMPBOX, 3809 3400-25J-022 CONTENTS CONTENTS C2-3420-BX-502 C2-3420-BX-502 CONTENTS 3420-SL-1269-C1B-6"-N 3420-SL-1263-C1B-6"-N 3420-SL-1266-C1B-6"-N 3420-WR-1678-C1A-2"-N 3420-SL-1205-C1B-6"-N 3420-SL-1245-C1B-6"-N 3420-WR-1684-C1A-4"-N C2-3420-PP-538 C2-3420-PP-537 C2-3420-PP-539 REGRIND EMERGENCY OVERFLOW SUMP WATER CANNONS SIZE: MATERIAL: MOTOR: C2-3420-PP-537 REGRIND EMERGENCY O/F SUMP PUMP NO.1 SIZE: MATERIAL: MOTOR: C2-3420-PP-538 REGRIND EMERGENCY O/F SUMP PUMP NO.2 SIZE: MATERIAL: MOTOR: C2-3420-PP-539 REGRIND EMERGENCY O/F SUBMERSIBLE SUMP PUMP 3420-WR-1685-C1A-3"-N REGRIND O/F SUMP TAILING LAUNDER, C2-3710-LA-001 3812 3700-25J-001 CONTENTS CONTENTS ES ES M M V3 V3 ES ES 3420 03217 B HS 3420 03207 B HS M M ES ES V3 V3 3420 03209 B HS 3420 03219 B HS OP/CL L/R OP/CL L/R OP/CL L/R OP/CL L/R
  • 159.
    D 4 F B A 3 2 1 5 68 E 7 C REV. APPROVED CHK. DES. REV. DATE REVISION DESCRIPTION CLIENT LEAD ENGINEER SCALE DRAWING NUMBER CHECK DESIGN CHECK DRAWING DESIGNED BY DRAWN BY APPROVAL DATE APPROVAL DATE APPROVED CHK. DES. REV. DATE REVISION DESCRIPTION REFERENCE DRAWING No. 1:100 0 1:200 5m 10m 0 5m 10m 15m 20m 1:500 10m 0 20m 30m 40m 50m 1:1000 0 100m 50m 1:20 0 0.5m 1m 1.5m 2m 0 1:25 0.5m 1m 1.5m 1:33 1/3 2.5m 2m 0 1m 2m 3m 0 1:50 1m 2m 3m 4m 5m CAD FILE NAME: P:0CAD000SPEM** MODEL UPDATED: DWG. FILE UPDATED: MANUAL CHANGES MADE: YES NO YES NO YES NO PROJECT MANAGER ENGINEERING MANAGER AREA PROJECT ENGINEER REFERENCE DRAWINGS SAFETY SHARE: APPROVAL DATE CONTRACT NO. SAFETY SHARE : BA6CVA1.IGR NOTICE: THIS DRAWING HAS NOT BEEN PUBLISHED AND IS THE SOLE PROPERTY OF FLUOR AND IS LENT TO THE BORROWER FOR THEIR CONFIDENTIAL USE ONLY, AND IN CONSIDERATION OF THE LOAN OF THIS DRAWING, THE BORROWER PROMISES AND AGREES TO RETURN IT UPON REQUEST AND AGREES THAT IT WILL NOT BE REPRODUCED, COPIED LENT OR OTHERWISE DISPOSED OF DIRECTLY OR INDIRECTLY, NOR USED FOR ANY OTHER PURPOSE OTHER THAN WHICH IT IS FURNISHED. NONE Apr 2011 240K-C2- NOTES: 1. VACUUM BREAK - OPEN END TO BE ROUTED 1 M HIGHER THAN TOP OF DISTRIBUTOR. 2. 3" RING HEADER C/W 7 - 1" DIA. SPRAY NOZZLES. 3. LOCATE ALL INSTRUMENTS AWAY FROM THE COLUMN CELLS. 4. 28 SPARGERS (1 PRESSURE INDICATOR PER 4 SPARGERS). 5. AIR LINE TO AIR HEADER TO BE BROUGHT DOWN FROM THE TOP OF TANK. COLUMN FEED COLUMN CELL FEED PUMPS, C2-3420-PP-522/523 2194 3400-25J-025 COLUMN FEED COLUMN TAILING COLLECTION PUMPBOX, 2195 3400-25J-043 COLUMN FEED COLUMN CELL NO. 2, C2-3430-CM-502 2196 3400-25J-034 COLUMN FEED COLUMN CELL NO. 3, C2-3430-CM-503 2197 3400-25J-034 COLUMN CONCENTRATE COLUMN CELL NO. 1 CONCENTRATE SAMPLER, 2198 3400-25J-037 COLUMN TAILING COLUMN CELL NO. 1 TAILING SAMPLER, C2-3430-SA-513 2199 3400-25J-042 C2-3430-SA-513 C2-3430-SA-505 C2-3430-BX-511 PLANT AIR 2202 3900-25J-021 AG KM LT ISSUED FOR CLIENT REVIEW 22-Dec-11 B RP ISSUED FOR COMBINED REVIEW 29-Jun-11 A 12/22/2011 K. MUNDY A. GUNSON W. BIE L. TAMELIN 12/21/2011 6:02:14 PM WBS: 3430 B PIPING AND INSTRUMENTATION DIAGRAM COLUMN FLOTATION 3400-25J-033 DISTRIBUTOR NO. 1 AND CELL NO. 1 3430-SL-1260-C1B-4"-N 1-1/2"x3/4" 3430-AA-1008-C1A-4"-N FI FI 3430-AA-1009-C1A-4"-N MISMATCH 3430 03304 LV + 3430-WF-1422-C1A-2"-N OP/CL SIZE: C2-3430-CM-501 COLUMN CELL NO. 1 H,P2 L,P2 SIZE: MATERIAL: CAPACITY: TRIM: C2-3430-DI-503 COLUMN CELLS FEED DISTRIBUTOR 1-1/2"x3/4" ES 3430 03313 XA ES 1-1/2"x3/4" 3430-WF- -C1A-3"-N OP/CL FI V 3430 03313 ZS MISMATCH 3430-SL-1254-R1A-10"-N MISMATCH 3430-WF-1530-C1A-1-1/2"-N OP/CL 3430 03321 XA 1-1/2"x3/4" 3430-AP-1258-C1A-4"-N H, P2 L, P2 NC 3430-WF-1530-C1A-1-1/2"-N 24'' MAN WAY 3430-WF-1411-C1A-8"-N 3430-SL-1258-R1A-20"-N 3430 03515 XA 3430 03310 XV + FI 3430-WF-1535-C1A-1-1/2"-N 3430 03314 XA 3430 03321 ZS 1-1/2"x3/4" 3430-SL-1255-R1A-8"-N OP/CL MISMATCH NOTE 1 C2-3430-CM-501 NOTE 2 FI 3430 03303 FIT 3430 03320 XA 10"x4" 4'' 3430 03302 FIC 3430-SL-1254-R1A-20"-N NOTE 5 3430 03302 FIT DRAIN FC 3430 03515 ZS 3430 03314 ZS 3430 03307 PI 20"x10" 3430 03303 FI MISMATCH MISMATCH 3430 03320 ZS MISMATCH MISMATCH NOTE 4 MISMATCH 3430 03301 FV + 4"x2" 3430 03319 XA C2-3430-DI-503 OP/CL 3430 03301 FE + 4"x2" NOTE 1 3430 03319 ZS 3430 03321 XV + 3430 03312 XA 3430 03305 PIT 3430 03311 XA 3430 03310 XA OP/CL 20"x12" NOTE 1 3430 03309 XA OP/CL OP/CL 3430 03309 XV + OP/CL 1" 3430 03313 XV + OP/CL 3430 03305 PI 3430 03318 ZS 4'' MISMATCH M FI 3430 03311 XV + 3430 03306 PCV + M 1" 3430 03318 XA 3430 03302 FV + OP/CL C1A 3430 03303 FE + 1" 3430 03317 XA 3430 03302 FE + 1" C1A 3430 03304 LIT 3430 03317 ZS 4"x2" H, P2 L, P2 FI 1" FI 3430 03312 ZS FI C1A 3430 03311 ZS FI 4"x2" 3430 03310 ZS 1" 3430 03304 LE 3430 03309 ZS 1" 4"x1" R1A 3430 03304 LIC 3430 03316 ZS 3430 03316 XA 1" 2"x1" 4'' 3430 03314 XV + 3430 03301 FIT 3430-SL-1261-C1B-4"-N 4"x2" 3430-SL-1257-R1A-20"-N 3430 03319 XV + 3430-SL-1262-C1B-14"-N 3430 03317 XV + 3430-SL-1259-C1B-4"-N 3430 03312 XV + 1-1/2"x3/4" 3430 03515 XV + V 3430 03320 XV + 3430 03301 FIC 3430-SL-1224-R1A-24"-N 3430 03318 XV + 3430-SL-1256-R1A-20"-N 3430 03316 XV + MISMATCH MISMATCH MISMATCH OP/CL V V V V V V V V V V V V V V V V V V V ES V V V V V V V V V V V V V FRESH WATER 3496 5100-25J-014 C V V V ES FRESH WATER 3497 5100-25J-014 FC FI FI 3430-AA-1010-C1A-4"-N 3430-RC-1152-C1D-1"-N 3430-WF-1531-C1A-3/4"-N 3430-WF-1532-C1A-3/4"-N 3430-WF-1533-C1A-3/4"-N 3430-WF-1534-C1A-3/4"-N V COL. FLOT. SUMP REGRIND EMERGENCY O/F SUMP 3795 3400-25J-032 3430-SL-1245-C1B-36"-N CONTENTS DEFOAMER INJECTOR, C2-3910-ZM-651 4115 3500-25J-033
  • 160.
    D 4 F B A 3 2 1 5 68 E 7 C REV. APPROVED CHK. DES. REV. DATE REVISION DESCRIPTION CLIENT LEAD ENGINEER SCALE DRAWING NUMBER CHECK DESIGN CHECK DRAWING DESIGNED BY DRAWN BY APPROVAL DATE APPROVAL DATE APPROVED CHK. DES. REV. DATE REVISION DESCRIPTION REFERENCE DRAWING No. 1:100 0 1:200 5m 10m 0 5m 10m 15m 20m 1:500 10m 0 20m 30m 40m 50m 1:1000 0 100m 50m 1:20 0 0.5m 1m 1.5m 2m 0 1:25 0.5m 1m 1.5m 1:33 1/3 2.5m 2m 0 1m 2m 3m 0 1:50 1m 2m 3m 4m 5m CAD FILE NAME: P:0CAD000SPEM** MODEL UPDATED: DWG. FILE UPDATED: MANUAL CHANGES MADE: YES NO YES NO YES NO PROJECT MANAGER ENGINEERING MANAGER AREA PROJECT ENGINEER REFERENCE DRAWINGS SAFETY SHARE: APPROVAL DATE CONTRACT NO. SAFETY SHARE : BA6CVA1.IGR NOTICE: THIS DRAWING HAS NOT BEEN PUBLISHED AND IS THE SOLE PROPERTY OF FLUOR AND IS LENT TO THE BORROWER FOR THEIR CONFIDENTIAL USE ONLY, AND IN CONSIDERATION OF THE LOAN OF THIS DRAWING, THE BORROWER PROMISES AND AGREES TO RETURN IT UPON REQUEST AND AGREES THAT IT WILL NOT BE REPRODUCED, COPIED LENT OR OTHERWISE DISPOSED OF DIRECTLY OR INDIRECTLY, NOR USED FOR ANY OTHER PURPOSE OTHER THAN WHICH IT IS FURNISHED. NONE Apr 2011 240K-C2- COLUMN FEED COLUMN CELL FEED DISTRIBUTOR, C2-3430-DI-503 2196 3400-25J-033 COLUMN FEED COLUMN CELL FEED DISTRIBUTOR, C2-3430-DI-503 2197 3400-25J-033 PLANT AIR 2205 3900-25J-021 COLUMN CONCENTRATE COLUMN CELL NO. 3 CONCENTRATE SAMPLER, 2206 3400-25J-037 COLUMN CONCENTRATE COLUMN CELL NO. 2 CONCENTRATE SAMPLER, 2207 3400-25J-037 FRESH WATER 2208 3400-25J-035 COLUMN TAILING COLUMN CELL NO. 2 TAILING SAMPLER, C2-3430-SA-514 2209 3400-25J-042 COLUMN TAILING COLUMN CELL NO. 3 TAILING SAMPLER, C2-3430-SA-515 2210 3400-25J-042 AG KM LT ISSUED FOR CLIENT REVIEW 22-Dec-11 B RP ISSUED FOR COMBINED REVIEW 29-Jun-11 A 12/22/2011 K. MUNDY A. GUNSON W. BIE L. TAMELIN 12/22/2011 10:29:57 AM WBS: 3430 B PIPING AND INSTRUMENTATION DIAGRAM COLUMN FLOTATION 3400-25J-034 CELLS NO. 2 AND NO. 3 MIN (TYP FOR ALL) 1-1/2"x3/4" V 3430-WF-1536-C1A-1-1/2"-N MIN (TYP FOR ALL) 3430 03433 ZS V FI 3430-WF-1542-C1A-1-1/2"-N 3430 03412 ZS FI 3430 03429 XV + 3430-WF-1415-C1A-2"-N 3430 03412 XA 3430 03429 XA FI 3430 03437 XA FI V V 3430 03429 ZS 3430 03421 FV + V OP/CL 1-1/2"x3/4" 3430 03437 ZS V 2"x1" ES 3430 03431 ZS 1-1/2"x3/4" V V 3430 03430 ZS 3430-SL-1268-R1A-8"-N MISMATCH 3430 03421 FE + 2"x1" 1-1/2"x3/4" 3430 03410 XA 3430 03432 ZS V 3430-WF-1413-C1A-3"-N 3430 03411 XA 3430 03432 XA M ES 3430 03417 XA 3430 03411 XV + 3430-WF-1416-C1A-2"-N 3430 03409 XA FI 3430-WF-1541-C1A-1-1/2"-N MISMATCH 3430 03406 PCV + 3430-SL-1264-R1A-10"-N 3430 03417 ZS 10"x8" 3430-AP-1259-C1A-2"-N OP/CL 4"x2" C2-3430-CM-503 V 3430-WF- -C1A-3"-N 3430 03410 ZS V 3430 03402 FE + 1-1/2"x3/4" ES OP/CL V 8"x4" 1-1/2"x3/4" V 3430 03411 ZS V 3430 03413 XV + V 3430 03409 ZS V 3430 03437 XV + ES 3430 03430 XA V 3430 03414 XV + 3430 03410 XV + 3430-WF-1547-C1A-1-1/2"-N 3430 03431 XA 3430 03435 XV + 3430-WF-15448-C1A-1-1/2"-N MISMATCH 3430 03433 XV + 3430 03423 FE + 8"x4" V 3430 03405 PIT FI V V 3430 03405 PI 3430 03436 XV + 2"x1" 10"x8" 3430-SL-1267-R1A-10"-N OP/CL 3430 03434 XV + M V 3430-AP-1259-C1A-4"-N 3430 03432 XV + 3430 03412 XV + V 20"x8" 3430-SL-1257-R1A-20"-N 3430 03403 FIT OP/CL V FC V 3430 03404 LIT MISMATCH 3430 03409 XV + V V M 3430 03403 FI 20"x8" 3430 03426 PCV + V 3430 03404 LE V 3430-WF-1536-C1A-1-1/2"-N 3" 3430 03416 XA SIZE: C2-3430-CM-502 COLUMN CELL NO. 2 V H, P2 L, P2 V 4"x2" 3430 03422 FE + ES 3430 03404 LIC 3430 03430 XV + 3430-SL- -R1A-8"-N 3430 03423 FIT 2"x1" 1" V V 3430 03425 PIT 1" FI 4"x2" V 3430 03423 FI FI V 3430 03425 PI MIN FC 3430 03402 FIC 3430 03416 ZS 4"x2" OP/CL 3430 03422 FV + 3430 03402 FV + MISMATCH MISMATCH 3430 03402 FIT V 1" 3430 03424 LIT SIZE: C2-3430-CM-503 COLUMN CELL NO. 3 3430 03401 FV + 3430 03407 PI 3430 03415 XA 3430 03436 XA 4"x2" V 3430 03401 FIT OP/CL FI V 3430 03424 LE FI V V 1-1/2"x3/4" H,P2 L,P2 V 4"x2" 3430 03417 XV + 3430 03401 FIC 3430 03403 FE + 3430 03424 LIC V 3430 03422 FIC 3430 03415 ZS 1" 3430 03404 LV + 3430 03422 FIT 3430 03436 ZS 20"x12" 3430 03427 PI MISMATCH 1" 3430 03421 FIT OP/CL 1" H,P2 L,P2 1" 3430 03421 FIC 3430 03435 XA FI NOTE 2 3430 03431 XV + OP/CL V 2"x1" NOTE 4 C2-3430-SA-507 20"x12" NOTE 4 C2-3430-SA-506 4"x2" 1" NOTE 2 3430 03414 ZS FI 1" 3" MISMATCH 1" 1" H, P2 L, P2 3430 03435 ZS V 1" 2"x1" 3430 03414 XA MISMATCH V FI MISMATCH MISMATCH OP/CL OP/CL MISMATCH 3430 03424 LV + 1-1/2"x3/4" NOTES: 1. AIR LINE TO AIR HEADER TO BE BROUGHT DOWN FROM THE TOP OF TANKS. 2. 3" RING HEADER C/W 7 - 1" DIA. SPRAY NOZZLES. 3. LOCATE ALL INSTRUMENTS AWAY FROM THE COLUMN CELLS. 4. 28 SPARGERS (1 PRESSURE INDICATOR PER 4 SPARGERS) MISMATCH 1" 1-1/2"x3/4" ES OP/CL 1-1/2"x3/4" 1" V V 3430 03413 XA OP/CL 3430 03401 FE + C2-3430-CM-502 OP/CL V MISMATCH 3430 03434 ZS 3430 03415 XV + V OP/CL MISMATCH V 24'' MAN WAY 1-1/2"x3/4" M V 3430 03413 ZS DRAIN NC V V FI MIN 3430 03434 XA V 3430-SL-1265-R1A-8"-N FI NOTE 1 MISMATCH 2"x1" V FI MIN (TYP FOR ALL) OP/CL 1" V FI 24'' MAN WAY V V MISMATCH DRAIN 3430-SL-1256-R1A-20"-N OP/CL NOTE 1 3430 03433 XA 1-1/2"x3/4" 3430-WF-1414-C1A-3"-N H, P2 L, P2 3430 03416 XV + 2"x1" H, P2 L, P2 V MIN (TYP FOR ALL) 1" 3430-AP- -C1A-2"-N MISMATCH V V V V V V V V V ES V V V V V V V V V V V V V V V V V V V V V V V V V V V V V V V ES FRESH WATER 3498 5100-25J-014 FRESH WATER 3499 5100-25J-014 FC 3430-SL-1267-R1A-20"-N 3430-SL-1264-R1A-20"-N 3430-WG-1543-C1A-3/4"-N 3430-WG-1544-C1A-3/4"-N 3430-WG-1545-C1A-3/4"-N 3430-WG-1546-C1A-3/4"-N 3430-RC-1157-C1D-1"-N 3430-RC-1156-C1D-1"-N FI FC 3430-WF-1537-C1A-3/4"-N 3430-WF-1538-C1A-3/4"-N 3430-WF-1539-C1A-3/4"-N 3430-WF-1540-C1A-3/4"-N DEFOAMER INJECTOR, C2-3910-ZM-503 4116 3500-25J-033 DEFOAMER INJECTOR, C2-3910-ZM-502 4114 3500-25J-033
  • 161.
    D 4 F B A 3 2 1 5 68 E 7 C REV. APPROVED CHK. DES. REV. DATE REVISION DESCRIPTION CLIENT LEAD ENGINEER SCALE DRAWING NUMBER CHECK DESIGN CHECK DRAWING DESIGNED BY DRAWN BY APPROVAL DATE APPROVAL DATE APPROVED CHK. DES. REV. DATE REVISION DESCRIPTION REFERENCE DRAWING No. 1:100 0 1:200 5m 10m 0 5m 10m 15m 20m 1:500 10m 0 20m 30m 40m 50m 1:1000 0 100m 50m 1:20 0 0.5m 1m 1.5m 2m 0 1:25 0.5m 1m 1.5m 1:33 1/3 2.5m 2m 0 1m 2m 3m 0 1:50 1m 2m 3m 4m 5m CAD FILE NAME: P:0CAD000SPEM** MODEL UPDATED: DWG. FILE UPDATED: MANUAL CHANGES MADE: YES NO YES NO YES NO PROJECT MANAGER ENGINEERING MANAGER AREA PROJECTENGINEER REFERENCE DRAWINGS SAFETY SHARE: APPROVAL DATE CONTRACT NO. SAFETY SHARE : BA6CVA1.IGR NOTICE: THIS DRAWING HAS NOT BEEN PUBLISHED AND IS THE SOLE PROPERTY OF FLUOR AND IS LENT TO THE BORROWER FOR THEIR CONFIDENTIAL USE ONLY, AND IN CONSIDERATION OF THE LOAN OF THIS DRAWING, THE BORROWER PROMISES AND AGREES TO RETURN IT UPON REQUEST AND AGREES THAT IT WILL NOT BE REPRODUCED, COPIED LENT OR OTHERWISE DISPOSED OF DIRECTLY OR INDIRECTLY, NOR USED FOR ANY OTHER PURPOSE OTHER THAN WHICH IT IS FURNISHED. NONE Apr 2011 240K-C2- 3430 03501 FE + C2-3430-DI-504 3430 03501 FV + 3430 03507 PI M 3430 03502 FIT 3430 03502 FIC FI NOTE 2 3430 03510 XV + NOTES: 1. VACUUM BREAK - OPEN END TO BE ROUTED 1 M HIGHER THAN TOP OF DISTRIBUTOR. 2. 3" RING HEADER C/W 7 - 1" DIA. SPRAY NOZZLES. 3. LOCATE ALL INSTRUMENTS AWAY FROM THE COLUMN CELLS. 4. 28 SPARGERS (1 PRESSURE INDICATOR PER 4 SPARGERS). 5. AIR LINE TO AIR HEADER TO BE BROUGHT DOWN FROM THE TOP OF TANK. H, P2 L, P2 SIZE: C2-3430-CM-504 COLUMN CELL NO. 4 FI 3430 03512 XV + 1" 1" 1" 1" 1" 1" 1" 3430 03511 XV + 1" 3430 03509 XV + 20"x12" 4"x2" 4"x2" 20"x10" 10"x4" 1-1/2"x3/4" 1-1/2"x3/4" 1-1/2"x3/4" 1-1/2"x3/4" 1-1/2"x3/4" 1-1/2"x3/4" 4"x2" 2"x1" 4"x1" 4"x2" 4"x2" 3430 03502 FE + 3430 03502 FV + 3430 03506 PCV + 4'' NOTE 1 24'' MAN WAY 4'' R1A C1A C1A C1A FI 4'' M NOTE 1 NOTE 1 3430 03503 FI FC 3430 03503 FIT C2-3430-CM-504 FI FI FI H,P2 L,P2 3430 03504 LV + FI 3430 03501 FIC 3430 03515 XV + 3430 03501 FIT 3430 03514 XV + 3430 03504 LIC 3430 03504 LE H, P2 L, P2 3430 03504 LIT 3430 03503 FE + 3430 03505 PI 3430 03513 XV + 3430 03505 PIT 3430 03521 XV + C2-3430-SA-508 NOTE 4 NOTE 5 3430-SL-1270-R1A-20"-N PLANT AIR 2407 3900-25J-021 FRESH WATER 2408 5100-25J-014 COLUMN FEED COLUMN CELL FEED PUMP, C2-3420-PP-523 2409 3400-25J-025 COLUMN FEED COLUMN TAILING COLLECTION PUMPBOX, 2410 3400-25J-043 COLUMN FEED COLUMN CELL NO. 5, C2-3430-CM-505 2411 3400-25J-036 COLUMN FEED COLUMN CELL NO. 6, C2-3430-CM-506 2412 3400-25J-036 COLUMN CONCENTRATE COLUMN CELL NO. 4 CONCENTRATE SAMPLER, 2413 3400-25J-037 C2-3430-BX-511 COLUMN TAILING COLUMN CELL NO. 4 TAILING SAMPLER, C2-3430-SA-516 2442 3400-25J-043 3430-SL-1271-R1A-8"-N 3430-WF-1553-C1A-1-1/2"-N 3430-SL-1274-R1A-20"-N 3430-WF-1417-C1A-8"-N 3430-WF-1536-C1A-1-1/2"-N 3430-AP-1261-C1A-4"-N 3430-SL-1270-R1A-10"-N V ES ES SIZE: MATERIAL: CAPACITY: TRIM: C2-3430-DI-504 COLUMN CELLS FEED DISTRIBUTOR 3430-WF-1418-C1A-2"-N 3430-AA-1012-C1A-4"-N 3430-AA-1011-C1A-4"-N 3430-SL-1276-C1B-4"-N 3430-SL-1272-R1A-20"-N 3430-SL-1222-R1A-24"-N V 3430-SL-1275-C1B-4"-N 3430-SL-1278-C1B-14"-N 3430-SL-1273-R1A-20"-N AG KM LT ISSUED FOR CLIENT REVIEW 22-Dec-11 B RP ISSUED FOR COMBINED REVIEW 29-Jun-11 A 12/22/2011 K. MUNDY A. GUNSON W. BIE L. TAMELIN 12/22/2011 10:21:36 AM WBS: 3430 B PIPING AND INSTRUMENTATION DIAGRAM COLUMN FLOTATION 3400-25J-035 DISTRIBUTOR NO. 2 AND CELL NO. 4 3430-SL-1277-C1B-4"-N 3430 03509 ZS 3430 03510 ZS 3430 03511 ZS 3430 03512 ZS OP/CL OP/CL OP/CL OP/CL 3430 03509 XA 3430 03510 XA 3430 03511 XA 3430 03512 XA MISMATCH MISMATCH MISMATCH MISMATCH 3430 03514 ZS 3430 03515 ZS 3430 03514 XA 3430 03515 XA OP/CL MISMATCH 3430 03513 ZS 3430 03513 XA OP/CL MISMATCH 3430 03516 XV + 3430 03518 XV + 3430 03520 XV + FI 3430 03517 XV + 3430 03519 XV + 3430 03516 XA 3430 03516 ZS FI FI FI FI 3430 03517 ZS 3430 03517 XA OP/CL 3430 03518 XA MISMATCH 3430 03518 ZS OP/CL 3430 03519 ZS OP/CL 3430 03519 XA MISMATCH 3430 03520 ZS 3430 03520 XA MISMATCH OP/CL 3430 03521 ZS 3430 03521 XA MISMATCH OP/CL DRAIN MISMATCH MISMATCH MISMATCH OP/CL V V V V V V V V V V V V V V V ES V V V V V V V V V V V V V V V V V V V ES FRESH WATER 2208 3400-25J-034 3430-WF-1536-C1A-1-1/2"-N FRESH WATER 2415 3400-25J-036 3430-AA-1013-C1A-4"-N FI FI FC V 3430-RC-1153-C1D-1"-N 3430-WF-1549-C1A-3/4"-N 3430-WF-1550-C1A-3/4"-N 3430-WF-1551-C1A-3/4"-N 3430-WF-1552-C1A-3/4"-N DEFOAMER INJECTOR, C2-3910-ZM-654 4120 3500-25J-033
  • 162.
    H, P2 L, P2 3" NOTE 2 NOTE4 NOTE 4 NOTE 2 3430 03621 FIC H,P2 L,P2 3430 03621 FIT 3430 03627 PI 3430 03622 FIT 3430 03622 FIC M 3430 03624 LIC 3430 03601 FIC H,P2 L,P2 3430 03624 LE 3430 03601 FIT 3430 03607 PI 3430 03624 LIT 3430 03602 FIT 3430 03602 FIC 3430 03625 PI 3430 03623 FI 3430 03625 PIT M 3430 03623 FIT M 3430 03604 LIC H, P2 L, P2 3" 3430 03604 LE 3430 03603 FI 3430 03604 LIT 3430 03603 FIT M OP/CL 3430 03605 PI 3430 03605 PIT MISMATCH 3430 03631 XA 3430 03630 XA 3430 03609 ZS 3430 03611 ZS OP/CL 3430 03610 ZS OP/CL 3430 03617 ZS MISMATCH 3430 03609 XA 3430 03617 XA 3430 03611 XA 3430 03610 XA MISMATCH 3430 03630 ZS 3430 03631 ZS 3430 03637 ZS OP/CL 3430 03629 ZS 3430 03637 XA 3430 03629 XA COLUMN TAILING COLUMN CELL NO. 5 TAILING SAMPLER, C2-3430-SA-517 2443 3400-25J-043 COLUMN TAILING COLUMN CELL NO. 6 TAILING SAMPLER, C2-3430-SA-518 2444 3400-25J-043 FRESH WATER 2415 3400-25J-035 FRESH WATER 2416 5100-25J-014 PLANT AIR 2417 3900-25J-021 COLUMN FEED COLUMN CELL FEED DISTRIBUTOR, C2-3430-DI-504 2411 3400-25J-035 COLUMN FEED COLUMN CELL FEED DISTRIBUTOR, C2-3430-DI-504 2412 3400-25J-035 MIN (TYP FOR ALL) MIN (TYP FOR ALL) MIN (TYP FOR ALL) H, P2 L, P2 NOTES: 1. AIR LINE TO AIR HEADER TO BE BROUGHT DOWN FROM THE TOP OF TANKS. 2. 3" RING HEADER C/W 7 - 1" DIA. SPRAY NOZZLES. 3. LOCATE ALL INSTRUMENTS AWAY FROM THE COLUMN CELLS. 4. 28 SPARGERS (1 PRESSURE INDICATOR PER 4 SPARGERS) H, P2 L, P2 NOTE 1 C2-3430-SA-509 C2-3430-SA-510 DRAIN 24'' MAN WAY MIN (TYP FOR ALL) NOTE 1 MIN DRAIN 24'' MAN WAY OP/CL MISMATCH OP/CL OP/CL OP/CL MISMATCH MISMATCH MISMATCH MISMATCH 1" FI 4"x2" 3430 03631 XV + 1" 1" V V FI 4"x2" FL 1" 2"x1" 3430 03630 XV + V V 3430 03612 XV + 2"x1" V 3430 03623 FE + 3430 03614 XV + 3430 03637 XV + 3430 03602 FE + 4"x2" V 3430 03621 FE + 1-1/2"x3/4" 3430 03621 FV + V 1-1/2"x3/4" 1" 3430 03616 XV + 1-1/2"x3/4" V 1-1/2"x3/4" 3430 03601 FE + 1-1/2"x3/4" 1" 3430 03624 LV + 2"x1" 1" 1" 20"x12" V FI 20"x12" 4"x2" V FI 4"x2" SIZE: C2-3430-CM-506 COLUMN CELL NO. 6 V 3430 03622 FV + FC FI 1" 4"x2" V 20"x8" 3430 03609 XV + FC V 8"x4" 3430 03610 XV + 8"x4" C2-3430-CM-506 10"x8" 3430 03606 PCV + FI 3430 03611 XV + 2"x1" V V 1-1/2"x3/4" 3430 03629 XV + V 1" 2"x1" FI 1" V V 1" 1" 1" 3430 03604 LV + 3430 03603 FE + 3430 03617 XV + V V 3430 03601 FV + 4"x2" V 3430 03622 FE + SIZE: C2-3430-CM-505 COLUMN CELL NO. 5 3430 03626 PCV + V 20"x8" V 10"x8" 3430 03613 XV + 1-1/2"x3/4" 1-1/2"x3/4" V 1-1/2"x3/4" 2"x1" V V 2"x1" V V 3430 03615 XV + C2-3430-CM-505 V 1-1/2"x3/4" 1-1/2"x3/4" FI 2"x1" 1" 1-1/2"x3/4" V 1" 3430 03602 FV + AG KM LT ISSUED FOR CLIENT REVIEW 22-Dec-11 B RP ISSUED FOR COMBINED REVIEW 29-Jun-11 A 12/22/2011 K. MUNDY A. GUNSON W. BIE L. TAMELIN 12/22/2011 10:23:35 AM WBS: 3430 B PIPING AND INSTRUMENTATION DIAGRAM COLUMN FLOTATION 3400-25J-036 CELLS NO. 5 AND NO. 6 V V V 3430-SL- -R1A-8"-N ES V V V V 3430-SL-1272-R1A-20"-N 3430-SL-1283-R1A-20"-N 3430-AP-1277-C1A-4"-N 3430-SL-1283-R1A-10"-N V V 3430-WF-1565-C1A-1-1/2"-N ES V V ES 3430-AP-1277-C1A-2"-N 3430-SL-1280-R1A-10"-N 3430-WF-1559-C1A-1-1/2"-N 3430-WF-1422-C1A-2"-N ES 3430-WF-1419-C1A-8"-N 3430-SL-1284-R1A-12"-N V ES V V 3430-WF- -C1A-2"-N 3430-WF-1560-C1A-1-1/2"-N 3430-WF-1536-C1A-1-1/2"-N 3430-AP-1278-C1A-2"-N V 3430-SL- -R1A-8"-N 3430-WF-1420-C1A-3"-N 3430-SL-1273-R1A-20"-N V V 3430-SL-1281-R1A-8"-N 3430-SL-1280-R1A-20"-N V V V V V V ES D 4 F B A 3 2 1 5 6 8 E 7 C REV. APPROVED CHK. DES. REV. DATE REVISION DESCRIPTION CLIENT LEAD ENGINEER SCALE DRAWING NUMBER CHECK DESIGN CHECK DRAWING DESIGNED BY DRAWN BY APPROVAL DATE APPROVAL DATE APPROVED CHK. DES. REV. DATE REVISION DESCRIPTION REFERENCE DRAWING No. 1:100 0 1:200 5m 10m 0 5m 10m 15m 20m 1:500 10m 0 20m 30m 40m 50m 1:1000 0 100m 50m 1:20 0 0.5m 1m 1.5m 2m 0 1:25 0.5m 1m 1.5m 1:33 1/3 2.5m 2m 0 1m 2m 3m 0 1:50 1m 2m 3m 4m 5m CAD FILE NAME: P:0CAD000SPEM** MODEL UPDATED: DWG. FILE UPDATED: MANUAL CHANGES MADE: YES NO YES NO YES NO PROJECT MANAGER ENGINEERING MANAGER AREA PROJECTENGINEER REFERENCE DRAWINGS SAFETY SHARE: APPROVAL DATE CONTRACT NO. SAFETY SHARE : BA6CVA1.IGR NOTICE: THIS DRAWING HAS NOT BEEN PUBLISHED AND IS THE SOLE PROPERTY OF FLUOR AND IS LENT TO THE BORROWER FOR THEIR CONFIDENTIAL USE ONLY, AND IN CONSIDERATION OF THE LOAN OF THIS DRAWING, THE BORROWER PROMISES AND AGREES TO RETURN IT UPON REQUEST AND AGREES THAT IT WILL NOT BE REPRODUCED, COPIED LENT OR OTHERWISE DISPOSED OF DIRECTLY OR INDIRECTLY, NOR USED FOR ANY OTHER PURPOSE OTHER THAN WHICH IT IS FURNISHED. NONE Apr 2011 240K-C2- 3430 03612 XA 3430 03612 ZS OP/CL MISMATCH FI FI FI FI 3430 03613 ZS 3430 03613 XA OP/CL MISMATCH 3430 03614 XA MISMATCH 3430 03614 ZS OP/CL 3430 03615 ZS OP/CL 3430 03612 XA MISMATCH 3430 03616 ZS 3430 03616 XA MISMATCH OP/CL 3430 03632 XV + 3430 03634 XV + 3430 03636 XV + FI 3430 03633 XV + 3430 03635 XV + V V V V V 3430 03632 XA 3430 03632 ZS FI FI FI FI 3430 03633 ZS 3430 03633 XA OP/CL MISMATCH 3430 03634 XA MISMATCH 3430 03634 ZS OP/CL 3430 03635 ZS OP/CL 3430 03635 XA MISMATCH 3430 03636 ZS 3430 03636 XA MISMATCH OP/CL MIN MISMATCH ES V V V V V V V V V V V V V V V V V V V V V V V V V V V V V V V ES V V V V V V V V FI FC 3430-WF-1561-C1A-3/4"-N 3430-WF-1562-C1A-3/4"-N 3430-WF-1563-C1A-3/4"-N 3430-WF-1564-C1A-3/4"-N FI FC 3430-RC-1159-C1D-1"-N 3430-WF-1555-C1A-3/4"-N 3430-WF-1556-C1A-3/4"-N 3430-WF-1557-C1A-3/4"-N 3430-WF-1558-C1A-3/4"-N 3430-RC-1158-C1D-1"-N COLUMN CONCENTRATE COLUMN CELL NO. 5 CONCENTRATE SAMPLER, 2220 3400-25J-041 COLUMN CONCENTRATE COLUMN CELL NO. 6 CONCENTRATE SAMPLER, 2219 3400-25J-041 DEFOAMER INJECTOR, C2-3910-ZM-655 4121 3500-25J-033 DEFOAMER INJECTOR, C2-3910-ZM-656 4119 3500-25J-033
  • 163.
    NOTE 1 VENDOR FLUOR NOTE1 NOTE 1 NOTES: 1. PROVISION FOR AUTOMATED SHIFT SAMPLER. V C2-3430-AZ-505 2"x1/2" C2-3430-SA-505 C2-3430-SA-506 C2-3430-SA-507 2"x1" 2"x1" 2"x1" V V V V V V D 4 F B A 3 2 1 5 6 8 E 7 C REV. APPROVED CHK. DES. REV. DATE REVISION DESCRIPTION CLIENT LEAD ENGINEER SCALE DRAWING NUMBER CHECK DESIGN CHECK DRAWING DESIGNED BY DRAWN BY APPROVAL DATE APPROVAL DATE APPROVED CHK. DES. REV. DATE REVISION DESCRIPTION REFERENCE DRAWING No. 1:100 0 1:200 5m 10m 0 5m 10m 15m 20m 1:500 10m 0 20m 30m 40m 50m 1:1000 0 100m 50m 1:20 0 0.5m 1m 1.5m 2m 0 1:25 0.5m 1m 1.5m 1:33 1/3 2.5m 2m 0 1m 2m 3m 0 1:50 1m 2m 3m 4m 5m CAD FILE NAME: P:0CAD000SPEM** MODEL UPDATED: DWG. FILE UPDATED: MANUAL CHANGES MADE: YES NO YES NO YES NO PROJECT MANAGER ENGINEERING MANAGER AREA PROJECT ENGINEER REFERENCE DRAWINGS SAFETY SHARE: APPROVAL DATE CONTRACT NO. SAFETY SHARE : BA6CVA1.IGR NOTICE: THIS DRAWING HAS NOT BEEN PUBLISHED AND IS THE SOLE PROPERTY OF FLUOR AND IS LENT TO THE BORROWER FOR THEIR CONFIDENTIAL USE ONLY, AND IN CONSIDERATION OF THE LOAN OF THIS DRAWING, THE BORROWER PROMISES AND AGREES TO RETURN IT UPON REQUEST AND AGREES THAT IT WILL NOT BE REPRODUCED, COPIED LENT OR OTHERWISE DISPOSED OF DIRECTLY OR INDIRECTLY, NOR USED FOR ANY OTHER PURPOSE OTHER THAN WHICH IT IS FURNISHED. NONE Apr 2011 240K-C2- C2-3430-LA-522 COLUMN CONCENTRATE COLUMN CELL NO. 3, C2-3430-CM-503 2206 3400-25J-034 COLUMN CONCENTRATE COLUMN CELL NO. 2, C2-3430-CM-502 2207 3400-25J-034 COLUMN CONCENTRATE COLUMN CELL NO. 1, C2-3430-CM-501 2198 3400-25J-033 C2-3430-CM-501 PROCESS WATER 2212 3900-25J-014 COLUMN CONCENTRATE COLUMN CELL NO. 5 CONC. SAMPLER, C2-3430-SA-509 1075 3400-25J-041 COLUMN CONCENTRATE COLUMN CELL NO. 4 CONC. SAMPLER, C2-3430-SA-508 1074 3400-25J-041 COLUMN CONCENTRATE COLUMN CELL NO. 6 CONC. SAMPLER, C2-3430-SA-510 1076 3400-25J-041 COLUMN CONCENTRATE COLUMN CONC. IN-STREAM ANALYZER NO. 2, 1077 3400-25J-041 COLUMN CONCENTRATE COLUMN CONC. COLLECTION PUMPBOX, C2-3430-BX-512 1079 3400-25J-041 SIZE: MATERIAL: CAPACITY: TRIM: C2-3430-SA-507 COLUMN CELL CONCENTRATE SAMPLER NO. 3 3430-SL-1286-R1A-8"-N 3430-SL-1285-R1A-4"-N 3430-SL-1268-R1A-8"-N 3430-SL-1293-R1A-6"-N SIZE: MATERIAL: MOTOR: C2-3430-AZ-505 COLUMN CELLS CONCENTRATE IN-STREAM ANALYZER 3430-SL-1265-R1A-8"-N 3430-WR-1721-C1A-2"-N 3430-SL-1292-R1A-6"-N ES SIZE: MATERIAL: CAPACITY: TRIM: C2-3430-SA-506 COLUMN CELL CONCENTRATE SAMPLER NO. 2 3430-SL-1295-R1A-6"-N 3430-SL-1291-R1A-6"-N 3430-WR-1723-C1A-1"-N 3430-SL-1301-R1A-6"-N SIZE: C2-3430-LA-522 COLUMN CONCENTRATE COLLECTION LAUNDER 3430-SL-1299-R1A-6"-N 3430-WF-1171-C1A-2"-N 3430-SL-1289-R1A-4"-N 3430-SL-1297-R1A-6"-N 3430-SL-1287-R1A-4"-N 3430-SL-1290-R1A-8"-N SIZE: MATERIAL: CAPACITY: TRIM: C2-3430-SA-505 COLUMN CELL CONCENTRATE SAMPLER NO. 1 3430-WR-1722-C1A-1"-N 3430-SL-1255-R1A-8"-N 3430-SL-1288-R1A-8"-N AG KM LT ISSUED FOR CLIENT REVIEW 22-Dec-11 B RP ISSUED FOR COMBINED REVIEW 29-Jun-11 A 12/22/2011 K. MUNDY A. GUNSON W. BIE L. TAMELIN 12/20/2011 7:27:34 PM WBS: 3430 B PIPING AND INSTRUMENTATION DIAGRAM COLUMN FLOTATION 3400-25J-037 CELL 1 TO 3 CONCENTRATE SAMPLING FRESH WATER 2817 5100-25J-014 C2-3430-AZ-507 3430-WR-1720-C1A-3"-N 3"x2" C2-3430-AZ-507 C2-3430-AZ-507 3430-SL-1302-R1A-6"-N 3430-SL-1300-R1A-6"-N COLUMN CONCENTRATE COLUMN CONC. IN-STREAM ANALYZER NO. 2, 3397 3400-25J-041 COLUMN CONCENTRATE COLUMN CONC. IN-STREAM ANALYZER NO. 2, 3396 3400-25J-041 3430-WR-1720-C1A-3"-N
  • 164.
    T3 AFD NOTE 2 T3 AFD 3430 04107 XA 3430 04117 XA 3430 04112 XA 3430 04109 ZS 3430 04119 ZS OP/CL MISMATCH 3430 04111 ZS MISMATCH 3430 04118 ZS 3430 04109 XA 3430 04111 XA 3430 04118 XA 3430 04119 XA 3430 04182 HS J/SP 3430 04110 LIC 3430 04105 PI L, P2 M 3430 04103 DIT 3430 04113 PI 3430 04181 XA 3430 04103 FY 3430 04104 FI 3430 04103 DE 3430 04110 LT 3430 04105 PIT OP/CL 3430 04103 WQI MASS FLOW M 3430 04117 ZS 3430 04112 ZS OP/CL 3430 04107 ZS M 3430 04115 PI L,P2 3430 04181 HS J/SP 3430 04114 FIT 3430 04181 II 3430 04101 HIC 3430 04103 DI 3430 04103 FIT MISMATCH 3430 04103 DX 3430 04115 PIT 3430 04103 FI 3430 04114 FI 3430 04182 II 3430 04182 XA 3430 04104 FIT 3430 04110 LE FRESHWATER 2818 5100-25J-014 RECLEANER CONCENTRATE RECLEANER CONC. SAMPLER, C2-3420-SA-537 2742 3400-25J-053 GLAND SEAL WATER 2961 3900-25J-023 RECLEANER CONCENTRATE CL SCAV/1ST CL INSTREAM ANALYZER, C2-3430-AZ-509 2726 3400-25J-053 COLUMN CONCENTRATE COLUMN CONC. COLLECTION LAUNDER, C2-3430-LA-522 3397 3400-25J-037 COLUMN CONCENTRATE COLUMN CELL NO.5, C2-3430-CM-505 2219 3400-25J-036 COLUMN CONCENTRATE COLUMN CONC. COLLECTION LAUNDER, C2-3430-LA-522 1077 3400-25J-037 COLUMN CONCENTRATE CU-MO CONCENTRATE THICKENER FEED BOX, 1860 3500-25J-001 C2-3610-BX-001 COLUMN CONCENTRATE COLUMN CONC. COLLECTION LAUNDER, C2-3430-LA-522 1076 3400-25J-037 COLUMN CONCENTRATE COLUMN CELL NO.4, C2-3430-CM-504 2218 3400-25J-035 COLUMN CONCENTRATE COLUMN CONC. COLLECTION LAUNDER, C2-3430-LA-522 1075 3400-25J-037 COLUMN CONCENTRATE COLUMN CONC. COLLECTION LAUNDER, C2-3430-LA-522 1079 3400-25J-037 COLUMN CONCENTRATE COLUMN CONC. COLLECTION LAUNDER, C2-3430-LA-522 3396 3400-25J-037 COLUMN CONCENTRATE CU CONCENTRATE THICKENER FEED BOX, 2213 3600-25J-001 COLUMN CONCENTRATE COLUMN CELL NO.6, C2-3430-CM-506 2220 3400-25J-036 COLUMN CONCENTRATE COLUMN CONC. COLLECTION LAUNDER, C2-3430-LA-522 1074 3400-25J-037 OP/CL OP/CL MISMATCH MISMATCH MISMATCH OP/CL OP/CL MISMATCH TO FLOOR LL, P1 L, P2 MIN L, P2 LL, P1 FLUOR NOTE 1 12" O/F VENDOR TO FLOOR NOTES: 1. MANUAL WATER ADDITION ON LOW LOW LEVEL. 2. PROVISION FOR AUTOMATED SHIFT SAMPLER. FAULT FAULT C2-3510-BX-003 NOTE 2 NOTE 2 L, P2 LL, P1 MIN MIN MIN MIN 3430 04114 FE + 3430-SL- -C1B-8"-N 3430 04117 XV + C2-3430-BX-512 V 2"x1-1/4" V 2"x1" 3430-SL-1300-R1A-6"-N 3430 04118 XV + V1 V 3430 04104 FE + 3"x2" 3430 04103 FE + V3 V1 V 1"x1-1/4" V3 V 8"x6" C2-3430-PP-515 V1 3430-WG-1019-C1A-1-1/2"-N V1 2"x1" 3430 04119 XV + 1-1/2"x1" 3430 04112 XV + V1 3"x1" V 2"x1" C2-3430-SA-508 C2-3430-AZ-507 2"x1/2" C2-3430-SA-510 C2-3430-SA-509 C2-3430-PP-514 3"x1" 3430 04109 XV + 8"x6" 3"x2" V 3430 04107 XV + 3430 04111 XV + 3430-SL-1301-R1A-6"-N 3430-SL-1302-R1A-6"-N AG KM LT ISSUED FOR CLIENT REVIEW 22-Dec-11 B RP ISSUED FOR COMBINED REVIEW 29-Jun-11 A 12/22/2011 K. MUNDY A. GUNSON W. BIE L. TAMELIN 12/20/2011 7:29:51 PM WBS: 3430 B PIPING AND INSTRUMENTATION DIAGRAM COLUMN FLOTATION 3400-25J-041 CELL 4 TO 6 CONCENTRATE SAMPLING SIZE: MATERIAL: MOTOR: C2-3430-PP-514 COLUMN CONCENTRATE TRANSFER PUMP SIZE: C2-3430-SA-510 COLUMN CELL CONCENTRATE SAMPLER NO.6 3430-SL-1281-R1A-8"-N 3430-SL-1297-R1A-8"-N 3430-SL-1294-R1A-4"-N 3430-WR-1263-C1A-8"-N 3430-WR-1726-C1A-6"-N ES SIZE: C2-3430-SA-508 COLUMN CELL CONCENTRATE SAMPLER NO.4 3430-SL-1307-R1A-24"-N ES SIZE: MATERIAL: MOTOR: C2-3430-PP-515 COLUMN CONCENTRATE TRANSFER PUMP 3430-WR-1727-C1A-1"-N 3430-WR-1725-C1A-2"-N 3430-WR-1728-C1A-1"-N 3430-SL-1299-R1A-8"-N SIZE:50 m3 MATERIAL: CAPACITY: TRIM: C2-3430-BX-512 COLUMN CONC. COLLECTION PUMPBOX ES 3430-SL-1295-R1A-8"-N 3430-WG-1061-C1A-1"-N 3430-SL-1309-R1A-12"-N ES ES ES 3430-SL-1271-R1A-8"-N 3430-SL-1310-R1A-12"-N SIZE: C2-3430-AZ-507 COLUM CELLS CONCENTRATE IN-STREAM ANALYZER 3430-SL-1298-R1A-4"-N 3430-SL-1296-R1A-4"-N 3430-SL-1306-R1A-24"-N 3430-WF-1178-C1A-2"-N 3430-SL-1284-R1A-8"-N 3430-SL-1308-R1A-12"-N SIZE: C2-3430-SA-509 COLUMN CELL CONCENTRATE SAMPLER NO.5 D 4 F B A 3 2 1 5 6 8 E 7 C REV. APPROVED CHK. DES. REV. DATE REVISION DESCRIPTION CLIENT LEAD ENGINEER SCALE DRAWING NUMBER CHECK DESIGN CHECK DRAWING DESIGNED BY DRAWN BY APPROVAL DATE APPROVAL DATE APPROVED CHK. DES. REV. DATE REVISION DESCRIPTION REFERENCE DRAWING No. 1:100 0 1:200 5m 10m 0 5m 10m 15m 20m 1:500 10m 0 20m 30m 40m 50m 1:1000 0 100m 50m 1:20 0 0.5m 1m 1.5m 2m 0 1:25 0.5m 1m 1.5m 1:33 1/3 2.5m 2m 0 1m 2m 3m 0 1:50 1m 2m 3m 4m 5m CAD FILE NAME: P:0CAD000SPEM** MODEL UPDATED: DWG. FILE UPDATED: MANUAL CHANGES MADE: YES NO YES NO YES NO PROJECT MANAGER ENGINEERING MANAGER AREA PROJECT ENGINEER REFERENCE DRAWINGS SAFETY SHARE: APPROVAL DATE CONTRACT NO. SAFETY SHARE : BA6CVA1.IGR NOTICE: THIS DRAWING HAS NOT BEEN PUBLISHED AND IS THE SOLE PROPERTY OF FLUOR AND IS LENT TO THE BORROWER FOR THEIR CONFIDENTIAL USE ONLY, AND IN CONSIDERATION OF THE LOAN OF THIS DRAWING, THE BORROWER PROMISES AND AGREES TO RETURN IT UPON REQUEST AND AGREES THAT IT WILL NOT BE REPRODUCED, COPIED LENT OR OTHERWISE DISPOSED OF DIRECTLY OR INDIRECTLY, NOR USED FOR ANY OTHER PURPOSE OTHER THAN WHICH IT IS FURNISHED. NONE Apr 2011 240K-C2- 3430-SL-1387-R1A-6"-N 3430-SL-1378-R1A-12"-N FC 3430 04101 HV + FI FI FI FI FI FI FL PROCESS WATER 2214 3900-25J-016 3430 B HS M M 3430 B HS
  • 165.
    D 4 F B A 3 2 1 5 68 E 7 C REV. APPROVED CHK. DES. REV. DATE REVISION DESCRIPTION CLIENT LEAD ENGINEER SCALE DRAWING NUMBER CHECK DESIGN CHECK DRAWING DESIGNED BY DRAWN BY APPROVAL DATE APPROVAL DATE APPROVED CHK. DES. REV. DATE REVISION DESCRIPTION REFERENCE DRAWING No. 1:100 0 1:200 5m 10m 0 5m 10m 15m 20m 1:500 10m 0 20m 30m 40m 50m 1:1000 0 100m 50m 1:20 0 0.5m 1m 1.5m 2m 0 1:25 0.5m 1m 1.5m 1:33 1/3 2.5m 2m 0 1m 2m 3m 0 1:50 1m 2m 3m 4m 5m CAD FILE NAME: P:0CAD000SPEM** MODEL UPDATED: DWG. FILE UPDATED: MANUAL CHANGES MADE: YES NO YES NO YES NO PROJECT MANAGER ENGINEERING MANAGER AREA PROJECT ENGINEER REFERENCE DRAWINGS SAFETY SHARE: APPROVAL DATE CONTRACT NO. SAFETY SHARE : BA6CVA1.IGR NOTICE: THIS DRAWING HAS NOT BEEN PUBLISHED AND IS THE SOLE PROPERTY OF FLUOR AND IS LENT TO THE BORROWER FOR THEIR CONFIDENTIAL USE ONLY, AND IN CONSIDERATION OF THE LOAN OF THIS DRAWING, THE BORROWER PROMISES AND AGREES TO RETURN IT UPON REQUEST AND AGREES THAT IT WILL NOT BE REPRODUCED, COPIED LENT OR OTHERWISE DISPOSED OF DIRECTLY OR INDIRECTLY, NOR USED FOR ANY OTHER PURPOSE OTHER THAN WHICH IT IS FURNISHED. NONE Apr 2011 240K-C2- NOTE 1 VENDOR FLUOR NOTE 1 NOTE 1 NOTES: 1. PROVISION FOR AUTOMATED SHIFT SAMPLER. V C2-3430-AZ-506 2"x1/2" C2-3430-SA-513 C2-3430-SA-514 C2-3430-SA-515 2"x1" 2"x1" 3"x1" V V V V V V COLUMN TAILING COLUMN TAILING COLLECTION PUMPBOX, 2425 3400-25J-043 C2-3430-LA-521 C2-3430-BX-511 FRESH WATER 2433 5100-25J-014 COLUMN TAILING COLUMN CELL #1 TAILING C2-3430-CM-501 2199 3400-25J-033 COLUMN TAILING COLUMN CELL NO.2 TAILING C2-3430-CM-502 2209 3400-25J-034 COLUMN TAILING COLUMN CELL NO.3 TAILING C2-3430-CM-503 2210 3400-25J-034 PROCESS WATER 2434 3900-25J-014 COLUMN TAILING COLUMN CELL NO.4 TAILING SAMPLER, C2-3430-SA-516 2435 3400-25J-043 COLUMN TAILING COLUMN CELL NO.5 TAILING SAMPLER, C2-3430-SA-517 2436 3400-25J-043 COLUMN TAILING COLUMN CELL NO.6 TAILING SAMPLER, C2-3430-SA-518 2437 3400-25J-043 COLUMN TAILING COLUMN TAILING IN-STREAM ANALYZER NO. 7, 2438 3400-25J-043 3430-SL-1326-R1A-20"-N 3430-SL-1318-R1A-6"-N 3430-SL-1319-R1A-6"-N 3430-SL-1322-R1A-20"-N 3430-SL-1267-R1A-20"-N SIZE: MATERIAL: CAPACITY: TRIM: C2-3430-SA-513 COLUMN CELL TAILING SAMPLER NO.1 3430-SL-1315-R1A-4"-N SIZE: MATERIAL: MOTOR: C2-3430-AZ-506 COLUMN CELLS FEED/TAILING IN-STREAM ANALYZER 3430-SL-1314-R1A-20"-N SIZE: C2-3430-LA-521 COLUMN TAILING COLLECTION LAUNDER 3430-SL-1316-R1A-20"-N 3430-SL-1312-R1A-20"-N 3430-SL-1254-R1A-20"-N 3430-SL-1311-R1A-4"-N 3430-WR-1730-C1A-1"-N SIZE: MATERIAL: CAPACITY: TRIM: C2-3430-SA-515 COLUMN CELL TAILING SAMPLER NO.3 3430-WF-1177-C1A-2"-N 3430-SL-1331-R1A-12"-N 3430-WR-1731-C1A-1"-N 3430-SL-1313-R1A-4"-N 3430-SL-1324-R1A-20"-N 3430-SL-1264-R1A-20"-N SIZE: MATERIAL: CAPACITY: TRIM: C2-3430-SA-514 COLUMN CELL TAILING SAMPLER NO.2 3430-WR-1729-C1A-3"-N 3430-SL-1317-R1A-6"-N ES AG KM LT ISSUED FOR CLIENT REVIEW 22-Dec-11 B RP ISSUED FOR COMBINED REVIEW 29-Jun-11 A 12/22/2011 K. MUNDY A. GUNSON W. BIE L. TAMELIN 12/20/2011 7:31:15 PM WBS: 3430 B PIPING AND INSTRUMENTATION DIAGRAM COLUMN FLOTATION 3400-25J-042 CELL 1 TO 3 TAILING SAMPLING NOTE 1 COLUMN FEED COMBINED COLUMN FEED SAMPLER NO.1, 2481 3400-25J-025 3430 04201 A AE 3430 04201 A AIT 3430 04201 A AIC ES PH PH CONTROL 3430-AV-04201C, 1395 3400-25J-006 PH CONTROL 3430-AV-04201B, 1381 3400-25J-001 PH CONTROL 3430-AV-04201A, 1378 3400-25J-001 PH CONTROL 3430-AV-04201F, 2652 3400-25J-044 PH CONTROL 3430-AV-04201G, 2654 3400-25J-044 3430-SL-1320-R1A-3"-N 3430-SL-1223-C1B-2"-N PH CONTROL 3398 3400-25J-043 C2-3430-AZ-508 3430 04201 HY 3430 04201 AIC SEL AVE PH CONTROL 3430-AV-04201D, 1403 3400-25J-014 PH CONTROL 3430-AV-04201E, 1404 3400-25J-014 C2-3410-LA-504 C2-3410-LA-403 C2-3410-LA-203 C2-3410-LA-103 C2-3410-LA-511 C2-3410-LA-514 C2-3410-LA-503 3430-WR-1719-C1A-3"-N 3"x2" C2-3420-SA-543
  • 166.
    NOTE 2 T3 AFD T3 AFD 3430 04383 XA 3430 04383 II 3430 04383 HS J/SP 3430 04302 LI 3430 04302 LIT 3430 04302 LE 3430 04201 B AE 3430 04201B AIT 3430 04201 B AIC 3430 04305 PIT 3430 04304 FIT 3430 04303 DIC 3430 04314 FIT 3430 04303 FY 3430 04315 PIT 3430 04303 FI 3430 04303 DIT 3430 04382 II 3430 04320 FIC HH,P1 H, P2 L, P2 LL,P1 3430 04303 DE 3430 04382 XA FAULT 3430 04310 LT 3430 04303 FIT M 3430 04382 HS J/SP 3430 04310 LE 3430 04313 PI 3430 04310 LIC 3430 04381 II MISMATCH 3430 04305 PI L, P2 3430 04304 FI 3430 04381 XA MISMATCH 3430 04381 HS J/SP M M 3430 04315 PI L,P2 3430 04314 FI 3430 04303 WQI MASS FLOW 3430 04312 ZS OP/CL 3430 04317 ZS 3430 04307 ZS 3430 04317 XA 3430 04307 XA 3430 04312 XA 3430 04309 ZS 3430 04319 ZS OP/CL 3430 04318 ZS OP/CL 3430 04308 ZS MISMATCH 3430 04309 XA OP/CL 3430 04308 XA 3430 04319 XA 3430 04318 XA 3430 04324 XA 3430 04324 ZS OP/CL 3430 04320 FIT M 3430 04323 DIT 3430 04323 FI 3430 04323 FY 3430 04323 WQI MASS FLOW 3430 04323 DE 3430 04323 DX 3430 04323 DIC 3430 04323 FIT 3430 04325 ZS 3430 04325 XA M 3430 04326 ZS 3430 04326 XA 3430 04323 HY 3430 04303 DX PH CONTROL, C2-3430-AZ-506 3398 3400-25J-042 GLAND SEAL WATER 2960 3900-25J-023 1ST CLEANER FEED 1ST CLEANER FEED DISTRIBUTOR, C2-3410-DI-505 2440 3400-25J-044 FRESH WATER 2441 5100-25J-014 COLUMN TAILING COLUMN CELL NO.4, C2-3430-CM-504 2442 3400-25J-035 COLUMN TAILING COLUMN CELL NO.5, C2-3430-CM-505 2443 3400-25J-036 COLUMN TAILING COLUMN CELL NO.6 TAILING, C2-3430-CM-506 2444 3400-25J-036 PROCESS WATER 2448 3900-25J-016 COLUMN FEED LOW GRADE REGRIND CYCLONE O/F SAMPLER, 2479 3400-25J-025 COLUMN FEED COMBINED COLUMN FEED SAMPL. NO.2, C2-3420-SA-544 2480 3400-25J-032 COLUMN TAILING COLUMN TAILING COLLECTION LAUNDER, 2425 3400-25J-042 COLUMN TAILING COLUMN TAILING COLLECTION LAUNDER, 2435 3400-25J-042 COLUMN TAILING COLUMN TAILING COLLECTION LAUNDER, 2436 3400-25J-042 COLUMN TAILING COLUMN TAILING COLLECTION LAUNDER, 2437 3400-25J-042 COLUMN TAILING COLUMN TAILING COLLECTION LAUNDER, 2438 3400-25J-042 COLUMN FEED COLUMN CELLS FEED DISTRIBUTOR NO.2, 2410 3400-25J-035 1ST CLEANER FEED 1ST CLEANER FEED DISTRIBUTOR, C2-3410-DI-505 3495 3400-25J-044 COLUMN FEED COLUMN CELLS FEED DISTRIBUTOR NO.1, 2195 3400-25J-033 C2-3430-LA-521 C2-3430-LA-521 C2-3430-LA-521 C2- 3430-LA-521 FAULT MISMATCH MISMATCH NOTE 2 H, P2 L, P2 LL, P1 PH C2-3420-SA-542 RSP C2-3430-DI-504 C2-3430-LA-521 NOTE 1 NOTE 2 NOTE 2 FLUOR MIN TO FLOOR MIN L, P2 LL, P1 12" O/F MIN TO FLOOR OP/CL MIN L, P2 LL, P1 FAULT MIN VENDOR NOTES: 1. MANUAL WATER ADDITION ON LOW LOW LEVEL. 2. PROVISION FOR AUTOMATED SHIFT SAMPLER. OP/CL MISMATCH MISMATCH MISMATCH LL,P1 L, P2 MISMATCH OP/CL MISMATCH OP/CL SELECT C2-3430-DI-503 3430 043020 FE + FI ES 3430 04324 XV + 3430 04326 XV + 3430 04323 FE + FI 3430 04325 XV + FI ES ES 3430 04312 XV + 8"x6" 8"x6" FI 3430 04307 XV + C2-3430-BX-511 3"x1" FI C2-3430-SA-518 3430 04303 FE + C2-3430-SA-516 2"x1/2" C2-3430-PP-512 3430 04318 XV + 3430 04309 XV + FI 3430 04308 XV + FI V1 V 1-1/2"x1" 3"x1" C2-3430-AZ-508 3430 04304 FE + 2"x1" C2-3430-SA-517 3430 04319 XV + V 3430 04314 FE + 3"x2" 2"x1-1/4" 2"x1" 2"x1" V V V 3430 04317 XV + FI C2-3430-PP-513 FI 3"x2" 1"x1-1/4" FI V V C2-3430-PP-516 SIZE: MATERIAL: MOTOR: C2-3430-PP-516 COLUMN AREA SPILLAGE PUMP ES AG KM LT ISSUED FOR CLIENT REVIEW 22-Dec-11 B RP ISSUED FOR COMBINED REVIEW 29-Jun-11 A 12/22/2011 K. MUNDY A. GUNSON W. BIE L. TAMELIN 12/21/2011 6:04:39 PM WBS: 3430 B PIPING AND INSTRUMENTATION DIAGRAM COLUMN FLOTATION 3400-25J-043 CELL 4 TO 6 TAILING SAMPLING 3430-SL-1330-R1A-3"-N 3430-SL-1221-C1B-2"-N 3430-SL-1225-R1A-42"-N 3430-WG-1050-C1A-1-1/2"-N SIZE: MATERIAL: MOTOR: C2-3430-PP-512 COLUMN TAILING TRANSFER PUMP 3430-SL-1327-R1A-6"-N 3430-WR-1732-C1A-2"-N 3430-WR-1734-C1A-1"-N ES ES 3430-SL-1336-R1A-42"-N 3430-SL-1322-R1A-20"-N 3430-SL-1326-R1A-20"-N 3430-WG-1056-C1A-1"-N 3430-SL-1324-R1A-20"-N 3430-SL-1334-R1A-48"-N 3430-WF-1179-C1A-2"-N 3430-SL-1323-R1A-4"-N 3430-SL-1280-R1A-20"-N 3430-WR-1733-C1A-6"-N ES SIZE: MATERIAL: CAPACITY: TRIM: C2-3430-BX-511 COLUMN TAILING COLLECTION PUMPBOX 3430-SL-1337-R1A-42"-N ES SIZE: C2-3430-SA-518 COLUMN CELL TAILING SAMPLER NO.6 SIZE: C2-3430-AZ-508 COLUMN CELLS TAILING IN-STREAM ANALYZER SIZE: C2-3430-SA-516 COLUMN CELL TAILING SAMPLER NO.4 SIZE: C2-3430-SA-517 COLUMN CELL TAILING SAMPLER NO.5 3430-SL-1321-R1A-4"-N 3430-SL-1329-R1A-6"-N 3430-SL-1328-R1A-6"-N ES 3430-SL-1270-R1A-20"-N ES 3430-SL-1335-R1A-48"-N 3430-WR-1265-C1A-8"-N 3430-SL-1283-R1A-20"-N 3430-SL-1325-R1A-4"-N 3430-WR-1735-C1A-1"-N SIZE: MATERIAL: MOTOR: C2-3430-PP-513 COLUMN TAILING TRANSFER PUMP 3430-SL-1332-R1A-42"-N 3430-SL-1331-R1A-12"-N FC 3430-SL-1278-C1B-14"-N 3430-SL-1262-C1B-14"-N D 4 F B A 3 2 1 5 6 8 E 7 C REV. APPROVED CHK. DES. REV. DATE REVISION DESCRIPTION CLIENT LEAD ENGINEER SCALE DRAWING NUMBER CHECK DESIGN CHECK DRAWING DESIGNED BY DRAWN BY APPROVAL DATE APPROVAL DATE APPROVED CHK. DES. REV. DATE REVISION DESCRIPTION REFERENCE DRAWING No. 1:100 0 1:200 5m 10m 0 5m 10m 15m 20m 1:500 10m 0 20m 30m 40m 50m 1:1000 0 100m 50m 1:20 0 0.5m 1m 1.5m 2m 0 1:25 0.5m 1m 1.5m 1:33 1/3 2.5m 2m 0 1m 2m 3m 0 1:50 1m 2m 3m 4m 5m CAD FILE NAME: P:0CAD000SPEM** MODEL UPDATED: DWG. FILE UPDATED: MANUAL CHANGES MADE: YES NO YES NO YES NO PROJECT MANAGER ENGINEERING MANAGER AREA PROJECTENGINEER REFERENCE DRAWINGS SAFETY SHARE: APPROVAL DATE CONTRACT NO. SAFETY SHARE : BA6CVA1.IGR NOTICE: THIS DRAWING HAS NOT BEEN PUBLISHED AND IS THE SOLE PROPERTY OF FLUOR AND IS LENT TO THE BORROWER FOR THEIR CONFIDENTIAL USE ONLY, AND IN CONSIDERATION OF THE LOAN OF THIS DRAWING, THE BORROWER PROMISES AND AGREES TO RETURN IT UPON REQUEST AND AGREES THAT IT WILL NOT BE REPRODUCED, COPIED LENT OR OTHERWISE DISPOSED OF DIRECTLY OR INDIRECTLY, NOR USED FOR ANY OTHER PURPOSE OTHER THAN WHICH IT IS FURNISHED. NONE Apr 2011 240K-C2- M 3430 B HS V3 M M M M M M V3 V3 V3 V3 V3 V3 3430 B HS 3430 B HS 3430 B HS 3430 B HS 3430 B HS 3430 B HS T8
  • 167.
    T1 T1 3410 04422 LE 3410 04401 LIC 3410 04401 LIT 3410 04481 II 3410 04401 LE 3410 04481 XA FAULT 3410 04402 LIT 3410 04421 LE 3410 04402 LI 3410 04422 LIT 3410 04422 LI 3410 04421 LIC 3410 04491 XAFAULT 3410 04421 LIT 3410 04423 AT 3410 04491 HS 3410 04423 AI 3410 04402 LE 3410 04403 AI 3410 04403 AT 3410 04481 HS 3410 04491 II VENDOR PROCESS WATER 2824 3900-25J-014 PROCESS WATER 2646 3900-25J-014 PROCESS WATER 2647 3900-25J-014 MILK OF LIME LIME DISTRIBUTION PUMPS, C2-3920-PP-093/094 2648 3900-25J-012 MILK OF LIME LIME DISTRIBUTION PUMPS, C2-3920-PP-093/094 2650 3900-25J-012 PH CONTROL C2-3430-AZ-506/508 2652 3400-25J-042 PH CONTROL C2-3430-AZ-506/508 2654 3400-25J-042 PROCESS WATER 2659 3400-25J-045 1ST CLEANER TAILING 1ST CLEANER CELL NO.2, ROW NO.1, C2,3410-SF-522 2660 3400-25J-045 1ST CLEANER TAILING 1ST CLEANER CELL NO.2, ROW NO.1, C2,3410-SF-522 2661 3400-25J-045 1ST CLEANER CONC. 1ST CLEANER CONCENTRATE LAUNDER, C2-3410-LA-511 2662 3400-25J-045 1ST CLEANER CONC. 1ST CLEANER CONCENTRATE BYPASS LAUNDER, 2663 3400-25J-045 PROCESS WATER 2664 3400-25J-045 C2-3410-LA-513 1ST CLEANER TAILING 1ST CLEANER CELL NO.2, ROW NO.2, C2+3410-SF-532 2665 3400-25J-045 1ST CLEANER TAILING 1ST CLEANER CELL NO.2, ROW NO.2, C2+3410-SF-532 2666 3400-25J-045 1ST CLEANER CONC. 1ST CLEANER CONCENTRATE LAUNDER, C2-3410-LA-514 2668 3400-25J-045 1ST CLEANER CONC. 1ST CLEANER CONCENTRATE BYPASS LAUNDER, 2669 3400-25J-045 1ST CLEANER FEED COLUMN TAILING COLLECTION PUMPBOX, 2440 3400-25J-043 (LAUNDER) (LAUNDER) J/SP AIR INTAKE VENDOR VENDOR VENDOR AIR INTAKE VENDOR J/SP VENDOR C2-3430-BX-511 C2-3410-LA-516 VENDOR VENDOR 3400-WR-1736-C1A-1-1/2"-N 3410-WR-1738-C1A-1-1/2"-N 3410-WR-1760-C1A-1-1/2"-N 3410-WR-1761-C1A-2"-N 3410-WR-1783-C1A-8"-N 3410 04401 B LV + 3410-SL-1336-R1A-42"-N SIZE: 255 m3 MATERIAL: MOTOR: C2-3410-CF-531 1ST CLEANER CELL NO.1 ROW NO.2 C2-3410-LA-511 3410-RL-1028-C1B-1-1/2"-N 3"x1-1/2" C2-3410-LA-514 3410-SL-1343-R1A-18"-N 3"x1-1/2" SIZE: C2-3410-LA-516 1ST CLEANER CONCENTRATE BYPASS LAUNDER NO.2 SIZE: C2-3410-ST-511 CLEANER CONCENTRATE DISTRIBUTION BOX NO.1 3410 04424 XV + 3410 04425 XV + 3400-WR-1737-C1A-1-1/2"-N 3410-WR-1736-C1A-3"-N 3410-WR-1736-C1A-3"-N 3"x1-1/2" 1-1/2"x1/2" 3410-RL-1029-C1B-1-1/2"-N 3410-WR-1782-C1A-1-1/2"-N C2-3410-CF-521 SIZE: C2-3410-LA-511 1ST CLEANER CONCENTRATE LAUNDER NO.1 3410 04404 XV + 3410 04401 A LV + 3410-WR-1762-C1A-1-1/2"-N C2-3410-ST-511 C2-3410-ST-521 C2-3410-CF-531 1-1/2"x1/2" 3430 04201 F AV + 3"x1-1/2" SIZE: 255 m3 MATERIAL: MOTOR: C2-3410-CF-521 1ST CLEANER CELL NO.1 ROW NO.1 SIZE: C2-3410-LA-514 1ST CLEANER CONCENTRATE LAUNDER NO.2 SIZE: C2-3410-ST-521 CLEANER CONCENTRATE DISTRIBUTION BOX NO.5 SIZE: C2-3410-LA-513 1ST CLEANER CONCENTRATE BYPASS LAUNDER NO.1 3410-SL-1342-R1A-18"-N 3410 04405 XV + 3410-WR-1781-C1A-1-1/2"-N 3410 04421 A LV + 3410-WR-1736-C1A-3"-N 3430 04201 G AV + 3410 04421 B LV + 3410-WR-1739-C1A-2"-N 3410-WR-1740-C1A-1-1/2"-N C2-3410-LA-516 C2-3410-DI-505 SIZE: C2-3410-DI-505 1ST CLEANER FEED DISTRIBUTOR C2-3410-LA-513 AG KM LT ISSUED FOR CLIENT REVIEW 22-Dec-11 B RP ISSUED FOR COMBINED REVIEW 29-Jun-11 A 12/22/2011 K. MUNDY A. GUNSON W. BIE L. TAMELIN 12/22/2011 2:59:32 PM WBS: 3400 B PIPING AND INSTRUMENTATION DIAGRAM FLOTATION 3400-25J-044 1ST CLEANER DISTRIBUTOR AND CELL 1 D 4 F B A 3 2 1 5 6 8 E 7 C REV. APPROVED CHK. DES. REV. DATE REVISION DESCRIPTION CLIENT LEAD ENGINEER SCALE DRAWING NUMBER CHECK DESIGN CHECK DRAWING DESIGNED BY DRAWN BY APPROVAL DATE APPROVAL DATE APPROVED CHK. DES. REV. DATE REVISION DESCRIPTION REFERENCE DRAWING No. 1:100 0 1:200 5m 10m 0 5m 10m 15m 20m 1:500 10m 0 20m 30m 40m 50m 1:1000 0 100m 50m 1:20 0 0.5m 1m 1.5m 2m 0 1:25 0.5m 1m 1.5m 1:33 1/3 2.5m 2m 0 1m 2m 3m 0 1:50 1m 2m 3m 4m 5m CAD FILE NAME: P:0CAD000SPEM** MODEL UPDATED: DWG. FILE UPDATED: MANUAL CHANGES MADE: YES NO YES NO YES NO PROJECT MANAGER ENGINEERING MANAGER AREA PROJECTENGINEER REFERENCE DRAWINGS SAFETY SHARE: APPROVAL DATE CONTRACT NO. SAFETY SHARE : BA6CVA1.IGR NOTICE: THIS DRAWING HAS NOT BEEN PUBLISHED AND IS THE SOLE PROPERTY OF FLUOR AND IS LENT TO THE BORROWER FOR THEIR CONFIDENTIAL USE ONLY, AND IN CONSIDERATION OF THE LOAN OF THIS DRAWING, THE BORROWER PROMISES AND AGREES TO RETURN IT UPON REQUEST AND AGREES THAT IT WILL NOT BE REPRODUCED, COPIED LENT OR OTHERWISE DISPOSED OF DIRECTLY OR INDIRECTLY, NOR USED FOR ANY OTHER PURPOSE OTHER THAN WHICH IT IS FURNISHED. NONE Apr 2011 240K-C2- 3410 04426 XV + 3410 04406 XV + 3410 04425 XA 3410 04424 XA 3410 04424 ZS 3410 04425 ZS MISMATCH OP/CL OP/CL MISMATCH 3410 04405 XA 3410 04404 XA 3410 04404 ZS 3410 04405 ZS MISMATCH OP/CL OP/CL MISMATCH 3410 04406 XA 3410 04426 XA 3410 04426 ZS 3410 04406 ZS MISMATCH OP/CL OP/CL MISMATCH V V V V V V V V V V V V V V V V 12" 12" C2-3430-BX-511 3410-SL-1332-R1A-42"-N MIN MIN 3410-SL-1344-R1B-28"-N V V V V FI FI 3410-SL-1340-R1A-42"-N FI FI FI FI 3410-WR-1736-C1A-3"-N FC FC 3410-SL-1341-R1A-42"-N 3410-SL-1345-R1B-28"-N V V V V MOLY COLLECTOR INJECTOR, C2-3910-ZM-571 2356 3900-25J-003 TEST REAGENT INJECTOR, C2-3910-ZM-704 2363 3900-25J-004 MOLY COLLECTOR INJECTOR, C2-3910-ZM-570 2355 3900-25J-003 TEST REAGENT INJECTOR, C2-3910-ZM-703 2362 3900-25J-004 3910-RC-1092-C1D-1"-N 3410-RC-1130-C1D-1"-N 3910-RC-1091-C1D-1"-N 3400-RC-1131-C1D-1"-N FROTHER ALCOHOL INJECTOR, C2-3910-ZM-688 2365 3900-25J-006 3410-RF-1038-C1D-1"-N 3410-RC-1040-C1D-1"-N 3410-RF-1039-C1D-1"-N 3410-RF-1041-C1D-1"-N 1ST CLEANER FEED COLUMN TAILING COLLECTION PUMPBOX, 3495 3400-25J-043 IMAGE IMAGE
  • 168.
    T1 T1 T1 T1 3410 04502 LI 3410 04592 II 3410 04501 LE 3410 04531 LE 3410 04512 LIT 3410 04521 LIC 3410 04522 LIT 3410 04513 AI 3410 04533 AT 3410 04532 LI 3410 04502 LIT 3410 04591 II 3410 04532 LIT 3410 04533 AI 3410 04502 LE 3410 04531 LIT 3410 04521 LIT 3410 04513 AT 3410 04511 LE 3410 04582 HS 3410 04521 LE 3410 04522 LE 3410 04501 LIC 3410 04501 LIT 3410 04531 LIC 3410 04581 II 3410 04511 LIC 3410 04522 LI 3410 04532 LE 3410 04512 LE 3410 04523 AT 3410 04503 AT 3410 04582 II 3410 04582 XA FAULT 3410 04592 HS 3410 04512 LI 3410 04503 AI 3410 04581 HS 3410 04592 XAFAULT 3410 04511 LIT 3410 04591 XA FAULT 3410 04581 XA FAULT 3410 04523 AI 3410 04591 HS PROCESS WATER 2659 3400-25J-044 1ST CLEANER TAILING 1ST CLEANER FLOTATION CELL NO.1 ROW NO.1, 2660 3400-25J-044 1ST CLEANER TAILING 1ST CLEANER FLOTATION CELL NO.1 ROW NO.1, 2661 3400-25J-044 1ST CLEANER CONC. 1ST CLEANER CONCENTRATE LAUNDER, C2-3410-LA-511 2662 3400-25J-044 1ST CLEANER CONC. 1ST CLEANER CONCENTRATE BYPASS LAUNDER NO.1, 2663 3400-25J-044 PROCESS WATER 2664 3400-25J-044 1ST CLEANER TAILING 1ST CLEANER FLOTATION CELL NO.1 ROW NO.2, 2665 3400-25J-044 1ST CLEANER TAILING 1ST CLEANER FLOTATION CELL NO.1 ROW NO.2, 2666 3400-25J-044 1ST CLEANER CONC. 1ST CL. CONC. LAUNDER NO.2, C2-3410-LA-514 2668 3400-25J-044 1ST CLEANER CONC. 1ST CL. CONC. LAUNDER NO.2, C2-3410-LA-516 2669 3400-25J-044 VENDOR J/SP J/SP VENDOR VENDOR AIR INTAKE VENDOR VENDOR VENDOR AIR INTAKE AIR INTAKE J/SP VENDOR VENDOR VENDOR J/SP AIR INTAKE VENDOR VENDOR VENDOR VENDOR C2-3410-ST-512 C2-3410-ST-513 C2-3410-ST-522 C2-3410-ST-523 1-1/2"x1/2" 3410 04511 B LV + 3410 04511 A LV + 3410-WR-1767-C1A-1-1/2"-N 1-1/2"x1/2" C2-3410-CF-532 SIZE: C2-3410-ST-512 CLEANER CONCENTRATE DISTRIBUTION BOX NO.2 3410-WR-1736-C1A-3"-N 3410-WR-1763-C1A-2"-N 3410-WR-1741-C1A-2"-N SIZE: C2-3410-ST-522 CLEANER CONCENTRATE DISTRIBUTION BOX NO.6 1-1/2"x1/2" SIZE: 255 m3 MOTOR: C2-3410-CF-532 1ST CLEANER FLOTATION CELL NO.2 ROW NO.2 C2-3410-CF-522 SIZE: 255 m3 MOTOR: C2-3410-CF-522 1ST CLEANER FLOTATION CELL NO.2 ROW NO.1 SIZE: C2-3410-ST-513 CLEANER CONCENTRATE DISTRIBUTION BOX NO.3 SIZE: C2-3410-ST-523 CLEANER CONCENTRATE DISTRIBUTION BOX NO.7 3410-SL-1342-R1A-18"-N 3410 04514 XV + SIZE: 255 m3 MOTOR: C2-3410-CF-523 1ST CLEANER FLOTATION CELL NO.3 ROW NO.1 3410-WR-1765-C1A-2"-N 3410-WR-1744-C1A-1-1/2"-N SIZE: 255 m3 MOTOR: C2-3410-CF-533 1ST CLEANER FLOTATION CELL NO.3 ROW NO.2 12" 12" 12" 12" 3410 04531 B LV + 3410-WR-1764-C1A-1-1/2"-N 3410 04501 B LV + 3410-WR-1766-C1A-1-1/2"-N 3410-WR-1742-C1A-1-1/2"-N 3410 04501 A LV + 3410 04531 A LV + C2-3410-CF-533 3410-WR-1745-C1A-1-1/2"-N 3410-WR-1736-C1A-3"-N 3410 04515 XV + 3410 04521 B LV + 3410 04521 A LV + 1-1/2"x1/2" C2-3410-CF-523 3410-WR-1743-C1A-2"-N 3410 04505 XV + 3410 04504 XV + 3410 04534 XV + 3410 04535 XV + 3410 04524 XV + 3410 04525 XV + D 4 F B A 3 2 1 5 6 8 E 7 C REV. APPROVED CHK. DES. REV. DATE REVISION DESCRIPTION CLIENT LEAD ENGINEER SCALE DRAWING NUMBER CHECK DESIGN CHECK DRAWING DESIGNED BY DRAWN BY APPROVAL DATE APPROVAL DATE APPROVED CHK. DES. REV. DATE REVISION DESCRIPTION REFERENCE DRAWING No. 1:100 0 1:200 5m 10m 0 5m 10m 15m 20m 1:500 10m 0 20m 30m 40m 50m 1:1000 0 100m 50m 1:20 0 0.5m 1m 1.5m 2m 0 1:25 0.5m 1m 1.5m 1:33 1/3 2.5m 2m 0 1m 2m 3m 0 1:50 1m 2m 3m 4m 5m CAD FILE NAME: P:0CAD000SPEM** MODEL UPDATED: DWG. FILE UPDATED: MANUAL CHANGES MADE: YES NO YES NO YES NO PROJECT MANAGER ENGINEERING MANAGER AREA PROJECT ENGINEER REFERENCE DRAWINGS SAFETY SHARE: APPROVAL DATE CONTRACT NO. SAFETY SHARE : BA6CVA1.IGR NOTICE: THIS DRAWING HAS NOT BEEN PUBLISHED AND IS THE SOLE PROPERTY OF FLUOR AND IS LENT TO THE BORROWER FOR THEIR CONFIDENTIAL USE ONLY, AND IN CONSIDERATION OF THE LOAN OF THIS DRAWING, THE BORROWER PROMISES AND AGREES TO RETURN IT UPON REQUEST AND AGREES THAT IT WILL NOT BE REPRODUCED, COPIED LENT OR OTHERWISE DISPOSED OF DIRECTLY OR INDIRECTLY, NOR USED FOR ANY OTHER PURPOSE OTHER THAN WHICH IT IS FURNISHED. NONE Apr 2011 240K-C2- VENDOR VENDOR VENDOR (LAUNDER) (LAUNDER) (LAUNDER) (LAUNDER) (LAUNDER) (LAUNDER) (LAUNDER) (LAUNDER) VENDOR VENDOR VENDOR VENDOR 3410-WR-1736-C1A-3"-N 3410-WR-1736-C1A-3"-N AG KM LT ISSUED FOR CLIENT REVIEW 22-Dec-11 B RP ISSUED FOR COMBINED REVIEW 29-Jun-11 A 12/22/2011 K. MUNDY A. GUNSON W. BIE L. TAMELIN 12/22/2011 2:57:37 PM WBS: 3400 B PIPING AND INSTRUMENTATION DIAGRAM FLOTATION 3400-25J-045 FIRST CLEANER CELLS 2 AND 3 3410 04508 A AE 3410 04508 A AIT 3410 04508 A AI ES PH C2-3410-LA-104 PH CONTROL, 3410-AV-04508A 1377 3400-25J-001 C2-3410-LA-204 PH CONTROL, 3410-AV-04508B 1380 3400-25J-001 C2-3410-LA-404 PH CONTROL, 3410-AV-4508C 2813 3400-25J-006 3410 04504 XA 3410 04504 ZS MISMATCH OP/CL 3410 04505 ZS OP/CL 3410 04505 XA MISMATCH 3410 04514 XA 3410 04514 ZS MISMATCH 3410 04515 ZS OP/CL 3410 04515 XA MISMATCH OP/CL 3410 04524 XA 3410 04524 ZS MISMATCH OP/CL 3410 04505 ZS OP/CL 3410 04505 XA MISMATCH 3410 04534 XA 3410 04534 ZS MISMATCH 3410 04535 ZS OP/CL 3410 04535 XA MISMATCH OP/CL 3410 04508 B AE 3410 04508 B AIT 3410 04508 B AI ES PH V V V V V V V V V V V V V V V V V V V V V V V V 3410 04508 HY 3410 04508 AIC AVE SEL PROCESS WATER 2655 3400-25J-047 1ST CLEANER TAILING 1ST CL. FLOTATION CELL NO.4, ROW NO.1, 2657 3400-25J-047 1ST CLEANER TAILING 1ST CL. FLOTATION CELL NO.4, ROW NO.1, 2658 3400-25J-047 1ST CLEANER CONC. CONCENTRATE LAUNDER, C2-3410-LA-104 2670 3400-25J-047 1ST CLEANER CONC. 1ST CLEANER CONC. BYPASS LAUNDER, C2-3410-LA-513 2671 3400-25J-047 PROCESS WATER 2672 3400-25J-047 1ST CLEANER TAILING 1ST CL. FLOTATION CELL NO.4, ROW NO.2, 2673 3400-25J-047 1ST CLEANER TAILING 1ST CL. FLOTATION CELL NO.4, ROW NO.2, 2674 3400-25J-047 1ST CLEANER CONC. 1ST CLEANER CONC. LAUNDER, C2-3410-LA-514 2676 3400-25J-047 1ST CLEANER CONC. 1ST CLEANER CONC. BYPASS LAUNDER, C2-3410-LA-516 2677 3400-25J-047 3410-SL-1346-R1B-28"-N 3410-SL-1347-R1B-28"-N 3410-SL-1348-R1B-28"-N 3410-SL-1349-R1B-28"-N 3410-SL-1343-R1A-18"-N C2-3410-LA-513 C2-3410-CF-524 C2-3410-CF-524 C2-3410-CFF-534 C2-3410-CFF-534 V V V V V V V V V V V V V V V V FI FI FI FI FI FI FI FI C2-3410-CF-531 C2-3410-CF-531 C2-3410-CF-521 C2-3410-CF-521 IMAGE IMAGE IMAGE IMAGE
  • 169.
    D 4 F B A 3 2 1 5 68 E 7 C REV. APPROVED CHK. DES. REV. DATE REVISION DESCRIPTION CLIENT LEAD ENGINEER SCALE DRAWING NUMBER CHECK DESIGN CHECK DRAWING DESIGNED BY DRAWN BY APPROVAL DATE APPROVAL DATE APPROVED CHK. DES. REV. DATE REVISION DESCRIPTION REFERENCE DRAWING No. 1:100 0 1:200 5m 10m 0 5m 10m 15m 20m 1:500 10m 0 20m 30m 40m 50m 1:1000 0 100m 50m 1:20 0 0.5m 1m 1.5m 2m 0 1:25 0.5m 1m 1.5m 1:33 1/3 2.5m 2m 0 1m 2m 3m 0 1:50 1m 2m 3m 4m 5m CAD FILE NAME: P:0CAD000SPEM** MODEL UPDATED: DWG. FILE UPDATED: MANUAL CHANGES MADE: YES NO YES NO YES NO PROJECT MANAGER ENGINEERING MANAGER AREA PROJECTENGINEER REFERENCE DRAWINGS SAFETY SHARE: APPROVAL DATE CONTRACT NO. SAFETY SHARE : BA6CVA1.IGR NOTICE: THIS DRAWING HAS NOT BEEN PUBLISHED AND IS THE SOLE PROPERTY OF FLUOR AND IS LENT TO THE BORROWER FOR THEIR CONFIDENTIAL USE ONLY, AND IN CONSIDERATION OF THE LOAN OF THIS DRAWING, THE BORROWER PROMISES AND AGREES TO RETURN IT UPON REQUEST AND AGREES THAT IT WILL NOT BE REPRODUCED, COPIED LENT OR OTHERWISE DISPOSED OF DIRECTLY OR INDIRECTLY, NOR USED FOR ANY OTHER PURPOSE OTHER THAN WHICH IT IS FURNISHED. NONE Apr 2011 240K-C2- 3410 04611 LIT 3410 04613 AI 3410 04623 AT 3410 04622 LI 3410 04613 AT 3410 04623 AI 3410 04632 LIT 3410 04631 LIC 3410 04603 AI 3410 04603 AT 3410 04682 II 3410 04602 LI 3410 04682 XA FAULT 3410 04602 LIT 3410 04692 II 3410 04612 LIT 3410 04612 LI 3410 04681 XA FAULT 3410 04621 LIT 3410 04681 II 3410 04621 LIC 3410 04633 AT 3410 04681 HS 3410 04682 HS 3410 04631 LE 3410 04602 LE 3410 04632 LI 3410 04691 XA FAULT 3410 04633 AI 3410 04601 LE 3410 04601 LIC 3410 04622 LE 3410 04601 LIT 3410 04692 XA FAULT 3410 04621 LE 3410 04632 LE 3410 04612 LE 3410 04631 LIT 3410 04691 HS 3410 04622 LIT 3410 04611 LE 3410 04692 HS 3410 04691 II 3410 04611 LIC VENDOR VENDOR VENDOR AIR INTAKE AIR INTAKE J/SP J/SP AIR INTAKE J/SP AIR INTAKE J/SP VENDOR VENDOR VENDOR VENDOR VENDOR VENDOR VENDOR VENDOR VENDOR VENDOR VENDOR VENDOR VENDOR VENDOR VENDOR (LAUNDER) (LAUNDER) C2- C2- C2- C2- 3410 04631 B LV + 3410 04611 A LV + 3410 04611 B LV + 3410 04615 XV + 3410 04614 XV + 3410 04621 A LV + 3410 04601 B LV + 3410 04601 A LV + 3410 04635 XV + 3410 04621 B LV + 3410 04631 A LV + C2- C2- 1-1/2"x1/2" 1-1/2"x1/2" 1-1/2"x1/2" 1-1/2"x1/2" 12" 12" 12" 12" 3410 04634 XV + T1 T1 T1 T1 (LAUNDER) (LAUNDER) (LAUNDER) (LAUNDER) (LAUNDER) (LAUNDER) PROCESS WATER 2636 3400-25J-045 1ST CLEANER FLOTATION CELL #3, ROW #1 2637 3400-25J-045 1ST CLEANER FLOTATION CELL #3, ROW #1 2638 3400-25J-045 C2-3410-LA-511 2639 3400-25J-045 C2-3410-LA-513 2640 3400-25J-045 PROCESS WATER 2641 3400-25J-045 1ST CLEANER FLOTATION CELL #3, ROW #2 2642 3400-25J-045 1ST CLEANER FLOTATION CELL #3, ROW #2 2643 3400-25J-045 C2-3410-LA-514 2644 3400-25J-045 C2-3410-LA-516 2645 3400-25J-045 3410 04616 XV + 3410 04604 XV + 3410 04605 XV + C2- 3410 04636 XV + 3410 04624 XV + 3410 04625 XV + C2- SIZE: C2- 1ST CLEANER CONCENTRATE DISTRIBUTION BOX # 4 SIZE: C2- 1ST CLEANER CONCENTRATE DISTRIBUTION BOX # 10 VENDOR VENDOR (LAUNDER) (LAUNDER) 3410-WR- -C1A-2"-N SIZE: 250 M3 MATERIAL: MOTOR: C2- 1ST CLEANER FLOTATION CELL #5 ROW #1 3410-WR- -C1A-1-1/2"-N SIZE: C2- 1ST CLEANER CONCENTRATE DISTRIBUTION BOX # 5 3410-WR- -C1A-1-1/2"-N 3410-WR- -C1A-1-1/2"-N 3410-WR- -C1A-2"-N 3410-WR- -C1A-1-1/2"-N 3410-WR- -C1A-1-1/2"-N SIZE: 250 M3 MATERIAL: MOTOR: C2- 1ST CLEANER FLOTATION CELL #4 ROW #2 3410-WR- -C1A-3"-N 3410-WR- -C1A-3"-N SIZE: C2- 1ST CLEANER CONCENTRATE DISTRIBUTION BOX # 11 SIZE: 250 M3 MATERIAL: MOTOR: C2- 1ST CLEANER FLOTATION CELL #5 ROW #2 SIZE: 250 M3 MATERIAL: MOTOR: C2- 1ST CLEANER FLOTATION CELL #4 ROW #1 3410-WR- -C1A-2"-N 3410-WR- -C1A-2"-N 3410-WR- -C1A-3"-N 3410-WR- -C1A-3"-N 3410-WR- -C1A-3"-N AG KM LT ISSUED FOR CLIENT REVIEW 22-Dec-11 B RP ISSUED FOR COMBINED REVIEW 29-Jun-11 A 12/22/2011 K. MUNDY A. GUNSON W. BIE L. TAMELIN 12/21/2011 7:38:10 AM WBS: 3400 B PIPING AND INSTRUMENTATION DIAGRAM FLOTATION 3400-25J-046 FIRST CLEANER CELLS 4 AND 5 3410 04605 XA 3410 04604 XA 3410 04604 ZS 3410 04605 ZS 3410 04625 XA 3410 04624 XA 3410 04624 ZS 3410 04625 ZS 3410 04614 XA 3410 04614 ZS 3410 04615 XA 3410 04615 ZS 3410 04616 XA 3410 04616 ZS MISSMATCH MISSMATCH MISSMATCH MISSMATCH MISSMATCH MISSMATCH MISSMATCH 3410 04634 XA 3410 04634 ZS 3410 04635 XA 3410 04635 ZS 3410 04636 XA 3410 04636 ZS MISSMATCH MISSMATCH MISSMATCH OP/CL OP/CL OP/CL OP/CL OP/CL OP/CL OP/CL OP/CL OP/CL OP/CL
  • 170.
    D 4 F B A 3 2 1 5 68 E 7 C REV. APPROVED CHK. DES. REV. DATE REVISION DESCRIPTION CLIENT LEAD ENGINEER SCALE DRAWING NUMBER CHECK DESIGN CHECK DRAWING DESIGNED BY DRAWN BY APPROVAL DATE APPROVAL DATE APPROVED CHK. DES. REV. DATE REVISION DESCRIPTION REFERENCE DRAWING No. 1:100 0 1:200 5m 10m 0 5m 10m 15m 20m 1:500 10m 0 20m 30m 40m 50m 1:1000 0 100m 50m 1:20 0 0.5m 1m 1.5m 2m 0 1:25 0.5m 1m 1.5m 1:33 1/3 2.5m 2m 0 1m 2m 3m 0 1:50 1m 2m 3m 4m 5m CAD FILE NAME: P:0CAD000SPEM** MODEL UPDATED: DWG. FILE UPDATED: MANUAL CHANGES MADE: YES NO YES NO YES NO PROJECT MANAGER ENGINEERING MANAGER AREA PROJECT ENGINEER REFERENCE DRAWINGS SAFETY SHARE: APPROVAL DATE CONTRACT NO. SAFETY SHARE : BA6CVA1.IGR NOTICE: THIS DRAWING HAS NOT BEEN PUBLISHED AND IS THE SOLE PROPERTY OF FLUOR AND IS LENT TO THE BORROWER FOR THEIR CONFIDENTIAL USE ONLY, AND IN CONSIDERATION OF THE LOAN OF THIS DRAWING, THE BORROWER PROMISES AND AGREES TO RETURN IT UPON REQUEST AND AGREES THAT IT WILL NOT BE REPRODUCED, COPIED LENT OR OTHERWISE DISPOSED OF DIRECTLY OR INDIRECTLY, NOR USED FOR ANY OTHER PURPOSE OTHER THAN WHICH IT IS FURNISHED. NONE Apr 2011 240K-C2- 3410 04711 LIT 3410 04713 AI 3410 04723 AT 3410 04722 LI 3410 04713 AT 3410 04723 AI 3410 04732 LIT 3410 04731 LIC 3410 04703 AI 3410 04703 AT 3410 04782 II 3410 04703 LI 3410 04782 XA FAULT 3410 04703 LIT 3410 04792 II 3410 04712 LIT 3410 04712 LI 3410 04781 XA FAULT 3410 04721 LIT 3410 04781 II 3410 04721 LIC 3410 04733 AT 3410 04781 HS 3410 04782 HS 3410 04731 LE 3410 04703 LE 3410 04732 LI 3410 04791 XA FAULT 3410 04733 AI 3410 04701 LE 3410 04701 LIC 3410 04722 LE 3410 04701 LIT 3410 04792 XA FAULT 3410 04721 LE 3410 04732 LE 3410 04712 LE 3410 04731 LIT 3410 04791 HS 3410 04722 LIT 3410 04711 LE 3410 04792 HS 3410 04791 II 3410 04711 LIC VENDOR VENDOR VENDOR AIR INTAKE AIR INTAKE J/SP J/SP AIR INTAKE J/SP AIR INTAKE J/SP VENDOR VENDOR VENDOR VENDOR VENDOR VENDOR VENDOR VENDOR VENDOR VENDOR VENDOR VENDOR VENDOR VENDOR VENDOR (LAUNDER) (LAUNDER) C2-3410-CF-534 C2-3410-CF-537 C2-3410-LA-512 3410 04731 B LV + 3410 04711 A LV + 3410 04711 B LV + 3410 04721 A LV + 3410 04701 B LV + 3410 04701 A LV + 3410 04721 B LV + 3410 04731 A LV + C2-3410-CF-527 C2-3410-CF-524 1-1/2"x1/2" 1-1/2"x1/2" 1-1/2"x1/2" 1-1/2"x1/2" 12" 12" 12" 12" T1 T1 T1 T1 (LAUNDER) (LAUNDER) (LAUNDER) (LAUNDER) (LAUNDER) (LAUNDER) 3410 04714 XV + 3410 04715 XV + C2-3410-ST-514 3410 04724 XV + 3410 04725 XV + C2-3410-ST-524 SIZE: C2-3410-ST-514 CLEANER CONCENTRATE DISTRIBUTION BOX NO. 4 SIZE: C2-3410-ST-524 CLEANER CONCENTRATE DISTRIBUTION BOX NO. 8 VENDOR VENDOR (LAUNDER) (LAUNDER) 3410 04716 XV + 3410 04726 XV + C2-3410-LA-515 PROCESS WATER 2655 3400-25J-045 1ST CLEANER TAILING 1ST CLEANER FLOTATION CELL NO.3, ROW NO.1, 2657 3400-25J-045 1ST CLEANER TAILING 1ST CLEANER FLOTATION CELL NO.3, ROW NO.1, 2658 3400-25J-045 1ST CLEANER CONC. FIRST CLEANER CONC. C2-3410-LA-511 2670 3400-25J-045 1ST CLEANER CONC. FIRST CLEANER CONC. C2-3410-LA-513 2671 3400-25J-045 PROCESS WATER 2672 3400-25J-045 1ST CLEANER TAILING 1ST CLEANER FLOTATION CELL NO. 3, ROW NO. 2, 2673 3400-25J-045 1ST CLEANER TAILING 1ST CLEANER FLOTATION CELL NO. 3, ROW NO. 2, 2674 3400-25J-045 1ST CLEANER CONC. 1ST CLEANER CONC. LAUNDER NO. 2, 2676 3400-25J-045 1ST CLEANER CONC. 1ST CLEANER CONC. BYPASS LAUNDER NO. 2, 2677 3400-25J-045 SIZE: 1.2 m x 1.5 m x 1.1 m C2-3410-LA-515 CLEANER SCAVENGER CONCENTRATE LAUNDER NO. 2 PROCESS WATER 2702 3400-25J-048 CLEANER SCAV. TAILING CLEANER SCAVENGER CELL NO. 2, ROW NO. 1, 2703 3400-25J-048 CLEANER SCAV. TAILING CLEANER SCAVENGER CELL NO. 2, ROW NO.1, 2704 3400-25J-048 CLEANER SCAV. CONC. CLEANER SCAV. CONC. LAUNDER NO. 1 2705 3400-25J-048 PROCESS WATER 2707 3400-25J-048 CLEANER SCAV. TAILING CLEANER SCAVENGER CELL NO. 2, ROW NO. 2, 2708 3400-25J-048 CLEANER SCAV. TAILING CLEANER SCAVENGER CELL NO. 2, ROW NO. 2, 2709 3400-25J-048 CLEANER SCAV. CONC. CLEANER SCAV. CONC. LAUNDER NO. 2 2710 3400-25J-048 1ST CLEANER CONC. RECLEANER FEED PUMPBOX, C2-3410-BX-514 2712 3400-25J-048 1ST CLEANER CONC. RECLEANER FEED PUMPBOX C2-3410-BX-514 2713 3400-25J-048 3410-SL-1343-R1A-18"-N SIZE: 255 m3 MATERIAL: MOTOR: C2-3410-CF-527 CLEANER SCAVENGER FLOTATION CELL NO. 1 ROW NO. 1 3410-WR-1736-C1A-3"-N 3410-WR-1754-C1A-1-1/2"-N 3410-WR-1755-C1A-1-1/2"-N 3410-WR-1736-C1A-3"-N 3410-WR-1773-C1A-2"-N SIZE: 255 m3 MATERIAL: MOTOR: C2-3410-CF-524 1ST CLEANER FLOTATION CELL NO. 4 ROW NO. 1 SIZE: 255 m3 MATERIAL: MOTOR: C2-3410-CF-534 1ST CLEANER FLOTATION CELL NO. 4 ROW NO. 2 3410-WR-1776-C1A-1-1/2"-N 3410-WR-1777-C1A-3"-N 3410-WR-1736-C1A-3"-N 3410-WR-1775-C1A-2"-N SIZE: 255 m3 MATERIAL: MOTOR: C2-3410-CF-537 CLEANER SCAVENGER FLOTATION CELL NO. 1 ROW NO.2 3410-WR-1751-C1A-2"-N 3410-WR-1752-C1A-1-1/2"-N 3410-WR-1774-C1A-1-1/2"-N SIZE: C2-3410-LA-512 CLEANER SCAVENGER CONCENTRATE LAUNDER NO. 1 3410-WR-1753-C1A-2"-N AG KM LT ISSUED FOR CLIENT REVIEW 22-Dec-11 B RP ISSUED FOR COMBINED REVIEW 29-Jun-11 A 12/22/2011 K. MUNDY A. GUNSON W. BIE L. TAMELIN 12/21/2011 6:06:55 PM WBS: 3400 B PIPING AND INSTRUMENTATION DIAGRAM FLOTATION 3400-25J-047 1ST CLEA. CELL 4 & CLEANER SCAV CELL 1 3410 04714 ZS 3410 04715 ZS 3410 04716 ZS OP/CL OP/CL OP/CL 3410 04714 XA 3410 04715 XA 3410 04716 XA MISMATCH MISMATCH MISMATCH 3410 04724 ZS 3410 04725 ZS 3410 04726 ZS OP/CL OP/CL 3410 04724 XA 3410 04725 XA 3410 04726 XA MISMATCH MISMATCH MISMATCH OP/CL V V V V V V V V V V V V V V V V V V V V 3410-SL-1355-R1B-28"-N 3410-SL-1354-R1B-28"-N 3410-SL-1357-R1B-28"-N 3410-SL-1356-R1B-28"-N MOLY COLLECTOR INJECTOR, C2-3910-ZM-573 2358 3900-25J-003 MOLY COLLECTOR INJECTOR, C2-3910-ZM-572 2357 3900-25J-003 3910-RC-1090-C1D-1"-N 3910-RC-1089-C1D-1"-N V V V V V V V V V V V V V V V V FI FI FI FI FI FI C2-3410-CF-523 C2-3410-CF-523 C2-3410-CF-533 C2-3410-CF-533 C2-3410-LA-514 C2-3410-LA-516 C2-3410-CF-528 C2-3410-CF-528 1ST CLEANER CONC. 1ST CLEANER CONC. SAMPLER NO.1, 2720 3400-25J-053 C2-341--SA-530 C2-3410-CF-538 C2-3410-CF-538 1ST CLEANER CONC. 1ST CLEANER CONC. SAMPLER NO. 2, 2736 3400-25J-053 C2-341--SA-533 3410-SL-1342-R1A-18"-N IMAGE IMAGE IMAGE IMAGE 3410-RC-1167-C1D-1"-N 3410-RC-1159-C1D-1"-N DEFOAMER INJECTOR, C2-3910-ZM-649 4113 3500-25J-033 DEFOAMER INJECTOR, C2-3910-ZM-650 4117 3500-25J-033
  • 171.
    T3 P.O NO.: VENDOR DWGNO.: VENDOR: P.O NO.: VENDOR DWG NO.: VENDOR: M 3410 04883 II 3410 04811 DX 3410 04811 DE 3410 04811 DIT 3410 04883 XA 3410 04806 PI 3410 04811 FQI 3410 04810 LE 3410 04811 FIT 3410 04883 HS J/SP 3410 04810 LIT 3410 04811 FI 3410 04813 PI 3410 04810 LIC 3410 04805 PIT 3410 04805 PI L, P2 M 3410 04804 FIT 3410 04811 DI 3410 04804 FI 3410 04811 FY 3410 04802 LE 3410 04801 LIC 3410 04881 XA FAULT 3410 04802 LIT 3410 04881 II 3410 04802 LI 3410 04881 HS 3410 04801 LE 3410 04801 LIT 3410 04821 LIC 3410 04891 HS 3410 04821 LIT 3410 04822 LI 3410 04891 II 3410 04891 XA FAULT 3410 04821 LE 3410 04822 LIT 3410 04822 LE CLEANER SCAV. TAILING CLEANER SCAVENGER/1ST CLEANER IN-STREAM 2734 3400-25J-053 CLEANER SCAV. TAILING CLEANER SCAVENGER/ 1ST CLEANER IN-STREAM 2735 3400-25J-053 CLEANER SCAV. CONC. CLEANER SCAVENGER CONC. SAMPLER NO.2, 2737 3400-25J-053 CLEANER SCAV. CONC. CLEANER SCAVENGER CONC. SAMPLER NO.1, 2721 3400-25J-053 GLAND SEAL WATER 2745 3900-25J-023 PROCESS WATER 2749 3900-25J-014 CLEANER SCAV. TAILING TAILING COLLECTION LAUNDER NO.1, 2750 3700-25J-001 ANALYZER, C2-3410-AZ-509 CLEANER SCAV. TAILING TAILING COLLECTION LAUNDER NO.1, 2751 3700-25J-001 ANALYZER, C2-3410-AZ-509 RECLEANER FEED RECLEANER CELL NO.1, C2-3410-CF-541 2748 3400-25J-051 PROCESS WATER 2702 3400-25J-047 CLEANER SCAV. TAILING CLEANER SCAV. CELL NO.1, ROW NO.1, C2-3410-C-527 2703 3400-25J-047 CLEANER SCAV. TAILING CLEANER SCAV. CELL NO.1, ROW NO.1, C2-3410-C-527 2704 3400-25J-047 CLEANER SCAV. CONC. CLEANER SCAV. CONC. LAUNDER, C2-3410-LA-512 2705 3400-25J-047 PROCESS WATER 2707 3400-25J-047 CLEANER SCAV. TAILING CLEANER SCAV. CELL NO.1, ROW NO.2, C2-3410-CF-515 2708 3400-25J-047 CLEANER SCAV. TAILING CLEANER SCAV. CELL NO.1, ROW NO.2, C2-3410-CF-515 2709 3400-25J-047 CLEANER SCAV. CONC. CLEANER SCAV. CONC. LAUNDER, C2-3410-LA-515 2710 3400-25J-047 1ST CLEANER CONC. 1ST CLEANER CONC. BYPASS LAUNDER NO.2, 2712 3400-25J-047 1ST CLEANER CONC. 1ST CLEANER CONC. BYPASS LAUNDER NO.1, 2713 3400-25J-047 MIN AFD TO FLOOR MIN H, P2 L, P2 LL, P1 L, P2 LL, P1 BY VENDOR BY VENDOR FAULT VENDOR AIR INTAKE J/SP VENDOR VENDOR J/SP VENDOR AIR INTAKE 3410 04808 XV + 3410 04807 XV + C2-3410-BX-514 ES 1-1/2" PL ES 1-1/2" PL ES 1-1/2"x1/2" C2-3410-CF-538 3410-WR-1778-C1A-2"-N 3410-WR-1779-C1A-1-1/2"-N 3410-SL-1364-R1A-30"-N 3" 1/2" BA-2000 3410 04804 FE + C2-3410-PP-517 BA 3410 04811 FE + 1-1/2" PL 3410-WR-1780-C1A-3"-N 12" 3410 04821 B LV + 3410-WR-1736-C1A-3"-N C2-3410-SA-531 C2-3410-SA-534 SIZE: 255 m3 MOTOR: C2-3410-CF-528 CLEANER SCAVENGER CELL NO.2, ROW NO.1 SIZE: 255 m3 MOTOR: C2-3410-CF-538 CLEANER SCAVENGER CELL NO.2, ROW NO.2 SIZE: C2-3410-SA-531 CLEANER SCAVENGER TAILING SAMPLER NO.1 SIZE: C2-3410-SA-534 CLEANER SCAVENGER TAILING SAMPLER NO.2 SIZE: MATERIAL: CAPACITY:67.0 m^3 TRIM:3410-SL-1363-C1B-N C2-3410-BX-514 RECLEANER FEED PUMPBOX SIZE: MATERIAL: MOTOR: C2-3410-PP-517 RECLEANER FEED PUMP FI 3410 04801 B LV + 3410-WR-1756-C1A-2"-N 1-1/2"x1/2" 3410-WR-1757-C1A-1-1/2"-N 12" 3410-WR-1758-C1A-3"-N 3410-WR-1736-C1A-3"-N C2-3410-CF-528 D 4 F B A 3 2 1 5 6 8 E 7 C REV. APPROVED CHK. DES. REV. DATE REVISION DESCRIPTION CLIENT LEAD ENGINEER SCALE DRAWING NUMBER CHECK DESIGN CHECK DRAWING DESIGNED BY DRAWN BY APPROVAL DATE APPROVAL DATE APPROVED CHK. DES. REV. DATE REVISION DESCRIPTION REFERENCE DRAWING No. 1:100 0 1:200 5m 10m 0 5m 10m 15m 20m 1:500 10m 0 20m 30m 40m 50m 1:1000 0 100m 50m 1:20 0 0.5m 1m 1.5m 2m 0 1:25 0.5m 1m 1.5m 1:33 1/3 2.5m 2m 0 1m 2m 3m 0 1:50 1m 2m 3m 4m 5m CAD FILE NAME: P:0CAD000SPEM** MODEL UPDATED: DWG. FILE UPDATED: MANUAL CHANGES MADE: YES NO YES NO YES NO PROJECT MANAGER ENGINEERING MANAGER AREA PROJECT ENGINEER REFERENCE DRAWINGS SAFETY SHARE: APPROVAL DATE CONTRACT NO. SAFETY SHARE : BA6CVA1.IGR NOTICE: THIS DRAWING HAS NOT BEEN PUBLISHED AND IS THE SOLE PROPERTY OF FLUOR AND IS LENT TO THE BORROWER FOR THEIR CONFIDENTIAL USE ONLY, AND IN CONSIDERATION OF THE LOAN OF THIS DRAWING, THE BORROWER PROMISES AND AGREES TO RETURN IT UPON REQUEST AND AGREES THAT IT WILL NOT BE REPRODUCED, COPIED LENT OR OTHERWISE DISPOSED OF DIRECTLY OR INDIRECTLY, NOR USED FOR ANY OTHER PURPOSE OTHER THAN WHICH IT IS FURNISHED. NONE Apr 2011 240K-C2- T1 T1 TO FLOOR AG KM LT ISSUED FOR CLIENT REVIEW 22-Dec-11 B RP ISSUED FOR COMBINED REVIEW 29-Jun-11 A 12/22/2011 K. MUNDY A. GUNSON W. BIE L. TAMELIN 12/22/2011 2:42:16 PM WBS: 3400 B PIPING AND INSTRUMENTATION DIAGRAM FLOTATION 3400-25J-048 CLEANER SCAV CELL 2 & RECLEANER FEED 3410 04803 AI 3410 04803 AT 3410 04823 AI 3410 04823 AT 3410-SL-1385-R1A-4"-N 3410-SL-1375-R1A-12"-N 3410-SL-1386-R1A-4"-N 3410-SL-1667-R1A-26"-N 3410-SL-1382-R1A-12"-N 3410-SL-1365-R1A-24"-N 3410 04807 ZS 3410 04807 XA OP/CL MISMATCH 3410 04808 ZS 3410 04808 XA MISMATCH C2-3430-SA-532 C2-3430-SA-535 MASS FLOW 3410 04812 XV + FI V V FI C2-3410-LA-001 C2-3410-LA-001 3410-SL-1392-R1A-26"-N 3410-SL-1360-R1B-28"-N 3410-SL-1361-R1B-28"-N 3410-WR-1784-C1A-3"-N 3410-SL-1342-R1A-18"-N 3410-SL-1343-R1A-18"-N V V V V V V V V 3410-WG-1099-C1A-1-1/2"-N 3400-RC-1086-C1D-1"-N 3410-SL-1358-R1B-28"-N 3410-SL-1359-R1B-28"-N C2-3410-LA-513 C2-3410-LA-516 IMAGE IMAGE M V3 3400 B HS MOLY COLLECTOR INJECTOR, C2-3910-ZM-576 2361 3900-25J-003
  • 172.
    T1 T1 T1 T3 P.O NO.: VENDORDWG NO.: VENDOR: 3410 05104 LI 3410 05103 LIC 3410 05183 II 3410 05183 XA FAULT 3410 05184 II 3410 05184 XA FAULT 3410 05101 LIC 3410 05182 II 3410 05182 XA FAULT 3410 05102 LI 3410 05103 LIT 3410 05104 LIT 3410 05101 LIT 3410 05183 HS 3410 05102 LIT 3410 05104 LE 3410 05103 LE 3410 05102 LE 3410 05101 LE 3410 05184 HS 3410 05182 HS 3410 05114 FIT 3410 05191 HS J/SP 3410 05114 FI 3410 05111 LIC 3410 05111 LIT 3410 05115 PI L, P2 3410 05118 ZS 3410 05115 PIT M 3410 05191 XA 3410 05111 LE 3410 05191 II 3410 05116 PI 3410 05117 ZS OP/CL 3410 05117 XA MISMATCH 3410 05118 XA MIN. MIN. RECLEANER CONCENTRATE RECLEANER CONCENTRATE SAMPLER C2-3410-SA-537 2722 3400-25J-053 RECLEANER TAILING CLNR SCAVENGER/1ST CLNR ANALYZER C2-3410-AZ-509 2744 3400-25J-053 RECLEANER FEED RECLEANER FEED PUMPBOX C2-3410-PP-517 2748 3400-25J-048 GLAND SEAL WATER 3505 3900-25J-023 RECLEANER TAILING ROUGHER CONC. COLLECTION PUMPBOX 2183 3400-25J-022 PROCESS WATER 2827 3900-25J-014 VENDOR VENDOR VENDOR VENDOR NOTE 2 J/SP J/SP J/SP AIR INTAKE AIR INTAKE NOTE 2 NOTE 2 AIR INTAKE VENDOR C2-2420-BX-502 AFD TO FLOOR L, P2 LL, P1 TO FLOOR MIN MIN FAULT H, P2 L, P2 LL, P1 BY VENDOR BY VENDOR MISMATCH C2-3410-LA-508 3" 3410-SL-1303-R1A-26"-N C2-3410-PP-171 BA 3410 05117 XV + 3410 05118 XV + FI FI 1/2" BA ES 1-1/2" PL SIZE: 160 m3 MOTOR: C2-3410-CF-542 1ST RECLEANER CELL NO. 2 12" 12" 3410 05103 LV + 3410 05101 A LV + 1-1/2"x1/2" 12" C2-3410-CF-542 3410 05101 B LV + 1-1/2"x1/2" SIZE: C2-3410-LA-506 1ST RECLEANER CONCENTRATE LAUNDER C2-3410-LA-506 3410-WR-1785-C1A-3"-N SIZE: 160 m3 MOTOR: C2-3410-CF-543 1ST RECLEANER CELL NO. 3 C2-3410-CF-543 1-1/2" PL 3410 05114 FE + C2-3410-BX-051 C2-3410-CF-541 3410-SL-1372-C1B-3"-N C2-3410-SA-536 SIZE: C2-3410-SA-536 RECLEANER TAILING SAMPLER 3410-WR-1794-C1A-1-1/2"-N 3410-WR-1792-C1A-2"-N 3410-WR-1790-C1A-2"-N 3410-WR-1789-C1A-1-1/2"-N 3410-WR-1788-C1A-2"-N 3410-SL-1369-R1B-28"-N 3410-SL-1368-R1B-28"-N 3410-SL-1367-R1B-28"-N 28"x18" 28"x18" 28"x18" AG KM LT ISSUED FOR CLIENT REVIEW 22-Dec-11 B RP ISSUED FOR COMBINED REVIEW 29-Jun-11 A 12/22/2011 K. MUNDY A. GUNSON W. BIE L. TAMELIN 12/22/2011 2:41:27 PM WBS: 3400 B PIPING AND INSTRUMENTATION DIAGRAM FLOTATION 3400-25J-051 RECLEANER FLOTATION V V V 3" KG R1A SIZE: C2-3410-BX-051 1ST RECLEANER CONCENTRATE PUMPBOX SIZE: 26" X 14" MATERIAL: MOTOR: C2-3410-PP-171 1ST RECLEANER CONCENTRATE PUMP NO.1 SIZE: C2-3410-LA-508 2ND RECLEANER CONCENTRATE LAUNDER 3410-SL-1373-R1A-20"-N 3410-SL-1370-R1A-28"-N 3410-WG-1068-C1A-1-1/2"-N 3410-SL-1366-R1A-28"-N 3410-SL-1304-R1A-14"-N V V V V V V V V 3410-SL-1365-R1A-24"-N D 4 F B A 3 2 1 5 6 8 E 7 C REV. APPROVED CHK. DES. REV. DATE REVISION DESCRIPTION CLIENT LEAD ENGINEER SCALE DRAWING NUMBER CHECK DESIGN CHECK DRAWING DESIGNED BY DRAWN BY APPROVAL DATE APPROVAL DATE APPROVED CHK. DES. REV. DATE REVISION DESCRIPTION REFERENCE DRAWING No. 1:100 0 1:200 5m 10m 0 5m 10m 15m 20m 1:500 10m 0 20m 30m 40m 50m 1:1000 0 100m 50m 1:20 0 0.5m 1m 1.5m 2m 0 1:25 0.5m 1m 1.5m 1:33 1/3 2.5m 2m 0 1m 2m 3m 0 1:50 1m 2m 3m 4m 5m CAD FILE NAME: P:0CAD000SPEM** MODEL UPDATED: DWG. FILE UPDATED: MANUAL CHANGES MADE: YES NO YES NO YES NO PROJECT MANAGER ENGINEERING MANAGER AREA PROJECT ENGINEER REFERENCE DRAWINGS SAFETY SHARE: APPROVAL DATE CONTRACT NO. SAFETY SHARE : BA6CVA1.IGR NOTICE: THIS DRAWING HAS NOT BEEN PUBLISHED AND IS THE SOLE PROPERTY OF FLUOR AND IS LENT TO THE BORROWER FOR THEIR CONFIDENTIAL USE ONLY, AND IN CONSIDERATION OF THE LOAN OF THIS DRAWING, THE BORROWER PROMISES AND AGREES TO RETURN IT UPON REQUEST AND AGREES THAT IT WILL NOT BE REPRODUCED, COPIED LENT OR OTHERWISE DISPOSED OF DIRECTLY OR INDIRECTLY, NOR USED FOR ANY OTHER PURPOSE OTHER THAN WHICH IT IS FURNISHED. NONE Apr 2011 240K-C2- SIZE: 160 m3 MOTOR: C2-3410-CF-541 1ST RECLEANER CELL NO. 1 3410 05127 ZS OP/CL 3410 05127 XA MISMATCH 3410 05127 XV + 26" PL T3 3410 05124 FIT 3410 05192 HS J/SP 3410 05124 FI 3410 05125 PI L, P2 3410 05128 ZS 3410 05125 PIT M 3410 05192 XA 3410 05192 II 3410 05126 PI 3410 05128 XA AFD TO FLOOR L, P2 LL, P1 MIN FAULT BY VENDOR BY VENDOR MISMATCH 3" C2-3410-PP-172 BA 3400 05128 XV + FI 1/2" BA ES 1-1/2" PL 3410 05124 FE + SIZE: 26" X 14" MATERIAL: MOTOR: C2-3410-PP-172 1ST RECLEANER CONCENTRATE PUMP NO.2 3400-SL- -R1A-26"-N 3410-WG- -C1A-1-1/2"-N
  • 173.
    D 4 F B A 3 2 1 5 68 E 7 C REV. APPROVED CHK. DES. REV. DATE REVISION DESCRIPTION CLIENT LEAD ENGINEER SCALE DRAWING NUMBER CHECK DESIGN CHECK DRAWING DESIGNED BY DRAWN BY APPROVAL DATE APPROVAL DATE APPROVED CHK. DES. REV. DATE REVISION DESCRIPTION REFERENCE DRAWING No. 1:100 0 1:200 5m 10m 0 5m 10m 15m 20m 1:500 10m 0 20m 30m 40m 50m 1:1000 0 100m 50m 1:20 0 0.5m 1m 1.5m 2m 0 1:25 0.5m 1m 1.5m 1:33 1/3 2.5m 2m 0 1m 2m 3m 0 1:50 1m 2m 3m 4m 5m CAD FILE NAME: P:0CAD000SPEM** MODEL UPDATED: DWG. FILE UPDATED: MANUAL CHANGES MADE: YES NO YES NO YES NO PROJECT MANAGER ENGINEERING MANAGER AREA PROJECT ENGINEER REFERENCE DRAWINGS SAFETY SHARE: APPROVAL DATE CONTRACT NO. SAFETY SHARE : BA6CVA1.IGR NOTICE: THIS DRAWING HAS NOT BEEN PUBLISHED AND IS THE SOLE PROPERTY OF FLUOR AND IS LENT TO THE BORROWER FOR THEIR CONFIDENTIAL USE ONLY, AND IN CONSIDERATION OF THE LOAN OF THIS DRAWING, THE BORROWER PROMISES AND AGREES TO RETURN IT UPON REQUEST AND AGREES THAT IT WILL NOT BE REPRODUCED, COPIED LENT OR OTHERWISE DISPOSED OF DIRECTLY OR INDIRECTLY, NOR USED FOR ANY OTHER PURPOSE OTHER THAN WHICH IT IS FURNISHED. NONE Apr 2011 240K-C2- C2-3430-SA-537 C2-3430-SA-532 C2-3430-SA-530 2"x1/2" C2-3430-AZ-509 V NOTE 1 NOTE 1 FLUOR VENDOR NOTE 1 V V V V V V 2"x1" 2"x1" 2"x1" NOTE 1 NOTE 1 NOTE 1 NOTE 1 NOTE 1 C2-3410-SA-535 C2-3410-SA-533 V V V V 2"x1" 2"x1" SIZE: C2-3430-SA-530 1ST CLEANER CONC. SAMPLER NO. 1 SIZE: C2-3430-SA-532 CLEANER SCAVENGER CONCENTRATE SAMPLER NO. 1 SIZE: C2-3430-SA-537 RECLEANER CONCENTRATE SAMPLER SIZE: C2-3430-AZ-509 CLEANER SCAVENGER/1ST CLEANER IN-STREAM ANALYZER SIZE: C2-3410-SA-533 1ST CLEANER CONC. SAMPLER NO. 2 SIZE: C2-3410-SA-535 CLEANER SCAVENGER CONCENTRATE SAMPLER NO. 2 1ST CLEANER CONC. 1ST CLEANER CONCENTRATE LAUNDER NO. 1, 2720 3400-25J-047 CLEANER SCAV. CONC. CLEANER SCAVENGER CONCENTRATE LAUNDER NO. 2721 3400-25J-048 RECLEANER CONCENTRATE 2ND RECLEANER CONCENTRATE LAUNDER, 2722 3400-25J-051 RECLEANER TAILING RECLEANER TAILING SAMPLER,C2-3410-SA-536 2723 3400-25J-051 PROCESS WATER 2724 3900-25J-016 RECLEANER CONCENTRATE COLUMN CONCENTRATE PUMPBOX, C2-3420-BX-512 2726 3400-25J-041 CLEANER SCAV. CONC. SCAVENGER CONCENTRATE COLLECTION PUMPBOX, 2727 3400-25J-026 1ST CLEANER CONC. COLUMN CELL FEED PUMPBOX, C2-3420-BX-503 2728 3400-25J-025 CLEANER SCAV. CONC. SCAVENGER CONCENTRATE COLLECTION PUMPBOX, 2729 3400-25J-026 RECELANER TAILING ROUGHER CONCENTRATE PUMPBOX, C2-3420-BX-502 2730 3400-25J-022 1ST CLEANER CONC. COLUMN CELL FEED PUMPBOX, C2-3420-BX-503 2731 3400-25J-025 CLEANER SCAV. TAILING TAILING COLLECTION LAUNDER NO.1, 2732 3700-25J-001 CLEANER SCAV. TAILING TAILING COLLECTION LAUNDER NO.1, 2733 3700-25J-001 CLEANER SCAV. TAILING CLEANER SCAVENGER TAILING SAMPLER NO.2, 2734 3400-25J-048 CLEANER SCAV. TAILING CLEANER SCAVENGER TAILING SAMPLER NO. 1, 2735 3400-25J-048 1ST CLEANER CONC. 1ST CLEANER CONCENTRATE BYPASS LAUNDER NO. 2, 2736 3400-25J-047 CLEANER SCAV. CONC. CLEANER SCAV. CONC. NO. 2, C2-3410-LA-515 2737 3400-25J-048 1ST CLEANER CONC. COLUMN CELL FEED PUMPBOX, C2-3420-BX-503 2738 3400-25J-025 CLEANER SCAV. CONC. SCAVENGER CONCENTRATE COLLECTION PUMPBOX, 2739 3400-25J-026 1ST CLEANER CONC. COLUMN CELL FEED PUMPBOX, C2-3420-BX-503 2740 3400-25J-025 CLEANER SCAV. CONC. SCAVENGER CONCENTRATE COLLECTION PUMPBOX, 2741 3400-25J-026 RECLEANER CONCENTRATE COLUMN CONCENTRATE PUMPBOX, C2-3420-BX-512 2742 3400-25J-041 PROCESS WATER 2743 3900-25J-014 C2-3420-BX-504 C2-3420-BX-504 C2-3410-SA-534 C2-3420-BX-504 C2-3420-BX-504 3430-WF-1176-C1A-2"-N 3410-SL-1378-R1A-12"-N 3410-SL-1377-R1A-12"-N 3410-SL-1376-R1A-12"-N 3410-SL-1384-R1A-12"-N 3410-SL-1381-R1A-12"-N 3410-SL-1372-R1A-4"-N 3410-SL- -R1A-4"-N 3410-SL- -R1A-4"-N 3410-SL-1385-R1A-4"-N 3410-SL-1386-R1A-4"-N 3410-SL-1387-R1A-6"-N 3410-SL-1388-R1A-6"-N 3410-SL-1389-R1A-6"-N 3410-SL-1390-R1A-6"-N 3410-SL-1391-R1A-6"-N 3410-SL-1392-R1A-6"-N 3410-SL-1393-R1A-6"-N 3410-SL-1394-R1A-6"-N 3410-SL- -R1A-4"-N 3410-SL- -R1A-4"-N 3410-SL-1379-R1A-12"-N 3430-WR-1271-C1A-2"-N 3430-SL-1370-R1A-12"-N 3430-SL-1375-R1A-12"-N 3430-SL-1374-R1A-12"-N ES 3430-WR-1795-C1A-1"-N 3430-WR-1796-C1A-1"-N 3410-WR-1798-C1A-1"-N 3410-SL-1382-R1A-12"-N 3410-WR-1797-C1A-2"-N AG KM LT ISSUED FOR CLIENT REVIEW 22-Dec-11 B RP ISSUED FOR COMBINED REVIEW 29-Jun-11 A 12/22/2011 K. MUNDY A. GUNSON W. BIE L. TAMELIN 12/22/2011 2:39:15 PM WBS: 3400 B PIPING AND INSTRUMENTATION DIAGRAM FLOTATION 3400-25J-053 CLEANER FLOTATION SAMPLING FRESH WATER 3101 C2-3410-LA-508 1 C2-3410-LA-512 C2-3410-LA-511 C2-3410-LA-514 C2-3410-SA-531 C2-3710-LA-001 C2-3710-LA-001 NOTES: 1. PROVISION TO BE MADE FOR COMPOSITE SAMPLE
  • 174.
    T3 T3 AFD T8 3510 00101 DE 3510 00101 PIC 3510 00114 FI MIN 3510 00101 WQI 3510 00183 XA 3510 00102 LE 3510 00184 II 3510 00102 LIT 3510 00185 XA 3510 00101 DIT 3510 00101 FIC 3510 00104 FI 3510 00101 PT 3510 00185 HS 3510 00182 XA 3510 00115 PI 3510 00115 PIT 3510 00183 II 3510 00127 LE 3510 00104 FIT 3510 00181 XA 3510 00117 ZS OP/CL 3510 00117 XA 3510 00107 ZS OP/CL 3510 00107 XA 3510 00106 ZS OP/CL 3510 00106 XA 3510 00108 XA 3510 00108 ZS OP/CL 3510 00116 ZS OP/CL 3510 00184 XA 3510 00101 DIC 3510 00182 II FAULT 3510 00101 WY 3510 00127 LI 3510 00101 FIT 3510 00113 PI 3510 00114 FIT / 3" 3510 00181 II HH, P1 H, P2 M 3510 00127 LIT 3510 00105 PI 3510 00183 HS 3510 00110 ZI 3510 00112 ZS 3510 00112 XA 3510 00182 HS 3510 00101 DX 3510 00102 LI 3510 00111 OI MIN 3510 00184 HS M M 3510 00181 HS J/SP 3510 00185 IIFAULT 3510 00105 PIT 3510 00116 XA 3510 00109 ZS OP/CL 3510 00118 ZS OP/CL 3510 00118 XA 3510 00109 XA 3510 00119 ZS OP/CL 3510 00119 XA 3510 00124 ZS OP/CL 3510 00123 ZS OP/CL 3510 00122 ZS OP/CL 3510 00123 XA 3510 00122 XA 3510 00124 XA 3510 00126 ZS OP/CL 3510 00125 ZS OP/CL 3510 00126 XA 3510 00125 XA DRAIN TO FLOOR TO FLOOR SUMP CU-MO THICKENER O/F CU CONC. THICKENER O/F TANK C2-3610-TK-005 1081 3600-25J-002 MO FLOT.AREA SUMP CONT. MO FLOTATION AREA SUMP PUMP, C2-3520-PP-608 1862 3500-25J-003 NAHS AREA SUMP CONT. NAHS AREA SUMP PUMP, C2-3510-PP-165 1861 3500-25J-035 MO 1ST CLEANER TAILING MO 1ST CLEANER TAILING PUMPS, C2-3520-PP-609/610 1854 3500-25J-011 COLUMN CONC. COLUMN CONC. TRANSFER PUMPS, C2-3430-PP-514/515 1860 3400-25J-041 MO ROUGHER SCAV. CONC. ROUGHER SCAV. CONC. PUMPS, C2-3520-PP-605/606 1855 3500-25J-005 CU-MO THICKENER U/F MO ROUGHER FEED SAMPLER, C2-3510-SA-611 1843 3500-25J-002 MIN MIN TO FLOOR SLOPE TORQUE SELECT MIN OP/CL TO FLOOR MIN MIN. MIN MIN. SLOPE MIN L, P2 LL, P1 MIN 3" MIN LIFT POSITION J/SP H, P2 RECYCLE (J) JF/JR SP J/SP H, P2 HH, P1 L, P2 L, P2 LL,P1 MASS FLOW J/SP L, P2 VENDOR SUPPLY L, P2 MIN FAULT FAULT FAULT 1-1/2" FI FI AG KM LT ISSUED FOR CLIENT REVIEW 22-Dec-11 B RP ISSUED FOR COMBINED REVIEW 30-Jun-11 A 12/22/2011 K. MUNDY A. GUNSON A. REGNAULT L. TAMELIN 12/22/2011 2:08:56 PM WBS: 3510 B PIPING AND INSTRUMENTATION DIAGRAM MOLY PLANT 3500-25J-001 CU-MO CONCENTRATE THICKENER 2"x1" C2-3510-TK-002 3510 00109 XV + NC SIZE: MATERIAL: MOTOR: C2-3510-PP-053 CU-MO CONCENTRATE THICKENER AREA SUMP PUMP FI 3510 00107 XV + 3510 00124 XV + FI C2-3510-BX-003 3510 00119 XV + 4" 1-1/2"x1" C2-3510-PP-056 1-1/2"x1" C2-3510-PP-055 FI 3510 00118 XV + FI FI 3510 00108 XV + 3510 00117 XV + 3510 00114 FE + 6" 16"x14" FI 1-1/2"x1" 3510 00116 XV + C2-3510-TM-002 3510 00122 XV + 3510 00112 XV + 1"x1/2" 1-1/2" 1-1/2" FI FI 3510 00104 FE + 1-1/2" FI 3510 00123 XV + 1-1/2" 1-1/2" 1-1/2" 3510 00125 XV + FI 3510 00126 XV + 16"x14" 1-1/2"x1" FI 3510 00101 FE + 1"x1/2" C2-3510-PP-053 3510 00106 XV + ES ES 3510-SL-1399-R1A-10"-N ES 3510-SL-1400-R1A-10"-N 3510-SL-1792-C1B-4"-N 3510-SL-1795-R1A-14"-N 3510-SL-1398-R1A-10"-N 3510-SL-1398-R1A-10"-N SIZE: MATERIAL: MOTOR: C2-3510-PP-056 CU-MO CONCENTRATE THICKENER UNDERFLOW PUMP NO. 2 SIZE: 45 m DIA MATERIAL: MOTOR: C2-3510-TM-002 CU-MO CONCENTRATE THICKENER MECHANISM 3510-WG-1037-C1A-2"-N 3510-SL-1401-R1A-10"-N 3510-SL-1793-C1B-30"-N ES 3510-SL-1450-R1A-6"-N 3510-WR-1799-C1A-18"-N R1A 3510-WR-1803-C1A-4"-N 3510-SL-1310-R1A-28"-N 3510-SL-1428-R1A-8"-N 3510-WR-1333-C1A-4"-N SIZE:45 mDIA C2-3510-TK-002 CU-MO CONCENTRATE THICKENER 3510-WR-1802-C1A-4"-N 3510-SL-1796-R1A-14"-N R1A SIZE: MATERIAL: MOTOR: C2-3510-PP-055 CU-MO CONCENTRATE THICKENER UNDERFLOW PUMP NO. 1 C1A ES 3510-WG-1706-C1A-1"-N 3510-SL-1409-C1B-4"-N C1A SIZE: MATERIAL: CAPACITY: TRIM:C1B C2-3510-BX-003 CU-MO CONCENTRATE THICKENER FEED BOX 3510-SL-1794-R1A-6"-N 3510-WR-1914-C1A-8"-N 3510-RS-1038-S1B-3"-N D 4 F B A 3 2 1 5 6 8 E 7 C REV. APPROVED CHK. DES. REV. DATE REVISION DESCRIPTION CLIENT LEAD ENGINEER SCALE DRAWING NUMBER CHECK DESIGN CHECK DRAWING DESIGNED BY DRAWN BY APPROVAL DATE APPROVAL DATE APPROVED CHK. DES. REV. DATE REVISION DESCRIPTION REFERENCE DRAWING No. 1:100 0 1:200 5m 10m 0 5m 10m 15m 20m 1:500 10m 0 20m 30m 40m 50m 1:1000 0 100m 50m 1:20 0 0.5m 1m 1.5m 2m 0 1:25 0.5m 1m 1.5m 1:33 1/3 2.5m 2m 0 1m 2m 3m 0 1:50 1m 2m 3m 4m 5m CAD FILE NAME: P:0CAD000SPEM** MODEL UPDATED: DWG. FILE UPDATED: MANUAL CHANGES MADE: YES NO YES NO YES NO PROJECT MANAGER ENGINEERING MANAGER AREA PROJECTENGINEER REFERENCE DRAWINGS SAFETY SHARE: APPROVAL DATE CONTRACT NO. SAFETY SHARE : BA6CVA1.IGR NOTICE: THIS DRAWING HAS NOT BEEN PUBLISHED AND IS THE SOLE PROPERTY OF FLUOR AND IS LENT TO THE BORROWER FOR THEIR CONFIDENTIAL USE ONLY, AND IN CONSIDERATION OF THE LOAN OF THIS DRAWING, THE BORROWER PROMISES AND AGREES TO RETURN IT UPON REQUEST AND AGREES THAT IT WILL NOT BE REPRODUCED, COPIED LENT OR OTHERWISE DISPOSED OF DIRECTLY OR INDIRECTLY, NOR USED FOR ANY OTHER PURPOSE OTHER THAN WHICH IT IS FURNISHED. NONE 240K-C2- CLARIFIER O/F CONC. CLARIFIER O/F PUMPS, C2-3610-PP-008/009 2548 3600-25J-004 CLARIFIER U/F CONC. CLARIFIER U/F PUMPS, C2-3610-PP-006/007 2589 3600-25J-004 3610-SL-1604-C1B-2"-N GLAND SEAL WATER 2965 3900-25J-023 C2-3430-SA-526 CU-MO THICKENER FEED CU CONCENTRATE THICKENER FEED BOX, 3311 3600-25J-001 C2-3610-BX-001 CU-MO THICKENER U/F SAFETY SCREEN FEED BOX, C2-3610-BX-041 3313 3600-25J-005 SIZE: C2-3430-SA-526 COMBINED COLUMN CONCENTRATE SAMPLER NOTE: 1. PROVISION FOR AUTOMATED SHIFT SAMPLES NOTE 1 MISMATCH MISMATCH MISMATCH MISMATCH MISMATCH MISMATCH MISMATCH V 3510 00101 HY RSP MISMATCH MISMATCH MISMATCH MISMATCH CU-MO THICKENER FEED 3610-BX-006 3758 3600-25J-003 3510-SL-1590-R1A-30"-N 3510-SL-1820-R1A-4"-N 3510-WR-1801-C1A-4"-N 3510-WR-1290-C1A-4"-N AFD PROCESS WATER 2926 3900-25J-016 CU-MO THICKENER U/F SAFETY SCREEN FEED BOX, C2-3620-BX-041 4220 3600-25J-005 3510-SL- - - -
  • 175.
    T1 H2S 3510 00281 HS J/SP 3510 00281 XA 3510 00203 AE 3510 00202 AI 3510 00202 AE PH 3510 00203 AI 3510 00202 AIT 3510 00203 AIT H, P2 3510 00281 II SPENT PROCESSGAS EQUALIZATION HEADER 2115 3500-25J-003 CU-MO THICKENER U/F CU-MO CONCENTRATE THICKENER U/F PUMPS, 1843 3500-25J-001 CU-MO THICKENER U/F MO ROUGHER ANALYZER, C2-3520-AZ-601 1881 3500-25J-006 CU-MO THICK. U/F MO ROUGHER FLOTATION CELLS 1845 3500-25J-003 VENDOR H, P2 L, P2 SLOPE FLUOR FAULT AG KM LT ISSUED FOR CLIENT REVIEW 22-Dec-11 B RP ISSUED FOR COMBINED REVIEW 30-Jun-11 A 12/22/2011 K. MUNDY A. GUNSON A. REGNAULT L. TAMELIN 12/22/2011 2:09:29 PM WBS: 3510 B PIPING AND INSTRUMENTATION DIAGRAM MOLY PLANT 3500-25J-002 MO CONDITIONING AND SAMPLING SIZE: MATERIAL: CAPACITY: TRIM: C2-3510-TK-601 MO CONDITIONING TANK C2-3510-AG-601 14"x10" C2-3510-TK-601 3510-WR-1290-C1A-4"-N 3510-SL-1402-R1A-14"-N 3510-RS-1055-S1B-1"-N SIZE: MATERIAL: MOTOR: C2-3510-AG-601 MO CONDITIONING TANK AGITATOR ES 3510-SL-1404-R1A-14"-N 3510-SL-1398-R1A-10"-N 3510-PG-1004-C1A-10"-N 3510-SL-1403-R1A-3"-N 3510-PG-1003-C1A-4"-N C2-3510-SA-611 D 4 F B A 3 2 1 5 6 8 E 7 C REV. APPROVED CHK. DES. REV. DATE REVISION DESCRIPTION CLIENT LEAD ENGINEER SCALE DRAWING NUMBER CHECK DESIGN CHECK DRAWING DESIGNED BY DRAWN BY APPROVAL DATE APPROVAL DATE APPROVED CHK. DES. REV. DATE REVISION DESCRIPTION REFERENCE DRAWING No. 1:100 0 1:200 5m 10m 0 5m 10m 15m 20m 1:500 10m 0 20m 30m 40m 50m 1:1000 0 100m 50m 1:20 0 0.5m 1m 1.5m 2m 0 1:25 0.5m 1m 1.5m 1:33 1/3 2.5m 2m 0 1m 2m 3m 0 1:50 1m 2m 3m 4m 5m CAD FILE NAME: P:0CAD000SPEM** MODEL UPDATED: DWG. FILE UPDATED: MANUAL CHANGES MADE: YES NO YES NO YES NO PROJECT MANAGER ENGINEERING MANAGER AREA PROJECTENGINEER REFERENCE DRAWINGS SAFETY SHARE: APPROVAL DATE CONTRACT NO. SAFETY SHARE : BA6CVA1.IGR NOTICE: THIS DRAWING HAS NOT BEEN PUBLISHED AND IS THE SOLE PROPERTY OF FLUOR AND IS LENT TO THE BORROWER FOR THEIR CONFIDENTIAL USE ONLY, AND IN CONSIDERATION OF THE LOAN OF THIS DRAWING, THE BORROWER PROMISES AND AGREES TO RETURN IT UPON REQUEST AND AGREES THAT IT WILL NOT BE REPRODUCED, COPIED LENT OR OTHERWISE DISPOSED OF DIRECTLY OR INDIRECTLY, NOR USED FOR ANY OTHER PURPOSE OTHER THAN WHICH IT IS FURNISHED. NONE Apr 2011 240K-C2- PROCESS WATER 3312 3900-25J-016 C02 GAS CO2 VAPORIZER, C2-3510-ZM-527 3316 3500-25J-036 NAHS SOLUTION NASH INJECTOR NO. 1, C2-3540-ZM-663 3554 3500-25J-037 3510-PG-1001-CIA-2"-N C2-3510-PP-005/056 SIZE: C2-3510-SA-611 MO ROUGHER FEED SAMPLER
  • 176.
    T8 T1 T1 T1 VENDOR 3510 00383 II 3510 00381 HS 3510 00301 LE 3510 00311 LIC 3510 00302 LT 3510 00382 XA FAULT 3510 00317 LIT 3510 00316 PI 3510 00388 XA 3510 00382 II 3510 00314 FIC 3510 00312 LT 3510 00311 LIT 3510 00317 LI 3510 00382 HS 3510 00381 XA FAULT 3510 00304 FIT 3510 00317 LE 3510 00302 LE 3510 00312 LI 3510 00301 LIC 3510 00304 FIC 3510 00315 AE 3510 00301 LIT 3510 00313 AIT PH 3510 00381 II 3510 00315 AI 3510 00388 II 3510 00314 FIT 3510 00313 AI 3510 00315 AIT 3510 00383 XAFAULT 3510 00312 LE 3510 00313 AE 3510 00311 LE 3510 00383 HS 3510 00302 LI 3510 00388 HS VENDOR MIN. MIN. NITROGEN NITROGEN VAPORIZER, C2-3510-ZM-528 1864 3500-25J-041 SPENT PROCESS GAS EQUALIZATION HEADER 1065 3500-25J-004 CONDITIONED CU-MO MO CONDITIONING TANK, C2-3510-TK-601 1845 3500-25J-002 MO FLOT.AREA SUMP CONT. CU-MO THICKENER FEED BOX, C2-3510-BX-003 1862 3500-25J-001 MO ROUGHER CONC. LAUNDER CONTINUE, C2-3510-LA-600 1852 3500-25J-004 MO ROUG. CELL NO.3 TAIL. MO ROUGHER FLOTATION CELL NO.4, C2-3510-CF-704 1069 3500-25J-004 SPENT PROCESS GAS MO CONDITIONING TANK, C2-3510-TK-601 2115 3500-25J-002 MO ROUG. CELL NO.3 TAIL. MO ROUGHER FLOTATION CELL NO.4, C2-3510-CF-704 1068 3500-25J-004 H, P2 HH. P1 L, P2 H, P2 L, P2 VENDOR VENDOR J/SP J/SP VENDOR VENDOR J/SP VENDOR VENDOR J/SP 3510-WR-1804-C1A-4"-N C2-3510-CF-701 AG KM LT ISSUED FOR CLIENT REVIEW 22-Dec-11 B RP ISSUED FOR COMBINED REVIEW 30-Jun-11 A 12/22/2011 K. MUNDY A. GUNSON A. REGNAULT L. TAMELIN 12/22/2011 12:19:07 PM WBS: 3510 B PIPING AND INSTRUMENTATION DIAGRAM MOLY PLANT 3500-25J-003 MO ROUGHER FLOTATION CELLS 1 TO 3 SIZE: C2-3510-CF-703 MO ROUGHER FLOTATION CELL NO.3 2"x1-1/2" 2"x1" 2"x1" 3510 00314 FV + 3510 00311 B LV + 3510-N2G-1002-C1D-2"-N C2-3510-CF-703 3510-PG-1004-C1D-10"-N SIZE: C2-3510-CF-702 MO ROUGHER FLOTATION CELL NO.2 12" C2-3510-LA-600 SIZE: C2-3510-LA-600 MO ROUGHER FLOTATION LAUNDER 3510-SL-1409-C1B-6"-N 3510 00311 A LV + 2"x1-1/2" 3510 00314 FE + 1"x1/2" 2"x1-1/2" 3510-WR-1805-C1A-2"-N SIZE: C2-3510-CF-701 MO ROUGHER FLOTATION CELL NO.1 3510 00301 A LV + 3510 00301 B LV + C2-3510-CF-702 3510-SL-1404-R1A-14"-N 3510-WR-1809-C1A-1"-N 2"x1" 3510-WR-1806-C1A-1"-N 2"x1-1/2" 3510 00304 FE + 3510-PG-1004-C1D-10"-N 3510-WR-1807-C1A-2"-N 1"x1/2" 3510-WR-1804-C1A-4"-N 12" 3510-WR-1808-C1A-2"-N SIZE: MATERIAL: MOTOR: C2-3510-PP-608 MO FLOTATION AREA SUMP PUMP C2-3510-PP-608 3510 00304 FV + 3510-PG-1005-C1A-6"-N 12" 3510-N2G-1017-C1D-2"-N 3510-PG-1006-C1A-6"-N D 4 F B A 3 2 1 5 6 8 E 7 C REV. APPROVED CHK. DES. REV. DATE REVISION DESCRIPTION CLIENT LEAD ENGINEER SCALE DRAWING NUMBER CHECK DESIGN CHECK DRAWING DESIGNED BY DRAWN BY APPROVAL DATE APPROVAL DATE APPROVED CHK. DES. REV. DATE REVISION DESCRIPTION REFERENCE DRAWING No. 1:100 0 1:200 5m 10m 0 5m 10m 15m 20m 1:500 10m 0 20m 30m 40m 50m 1:1000 0 100m 50m 1:20 0 0.5m 1m 1.5m 2m 0 1:25 0.5m 1m 1.5m 1:33 1/3 2.5m 2m 0 1m 2m 3m 0 1:50 1m 2m 3m 4m 5m CAD FILE NAME: P:0CAD000SPEM** MODEL UPDATED: DWG. FILE UPDATED: MANUAL CHANGES MADE: YES NO YES NO YES NO PROJECT MANAGER ENGINEERING MANAGER AREA PROJECTENGINEER REFERENCE DRAWINGS SAFETY SHARE: APPROVAL DATE CONTRACT NO. SAFETY SHARE : BA6CVA1.IGR NOTICE: THIS DRAWING HAS NOT BEEN PUBLISHED AND IS THE SOLE PROPERTY OF FLUOR AND IS LENT TO THE BORROWER FOR THEIR CONFIDENTIAL USE ONLY, AND IN CONSIDERATION OF THE LOAN OF THIS DRAWING, THE BORROWER PROMISES AND AGREES TO RETURN IT UPON REQUEST AND AGREES THAT IT WILL NOT BE REPRODUCED, COPIED LENT OR OTHERWISE DISPOSED OF DIRECTLY OR INDIRECTLY, NOR USED FOR ANY OTHER PURPOSE OTHER THAN WHICH IT IS FURNISHED. NONE Apr 2011 240K-C2- FAULT PROCESS WATER 2114 3900-25J-016 FC FC ORP V V V V H, P2 L, P2 NAHS SOLUTION NAHS INJECTOR NO.4, C2-3510-ZM-630 3552 3500-25J-037 THICKENED U/F 3510-SL-1447-R1A-6"-N 3510-SL-1446-R1A-6"-N 3510-SL-1408-R1A-14"-N 3510-SL-1407-R1A-14"-N PROCESS WATER 1066 3510-RC-1056-C1D-1"-N 3510-SL-1424-R1A-6"-N 3510-SL-1425-R1A-6"-N 3510-SL-1406-R1A-14"-N 3510-RC-1166-C1D-1"-N DEFOAMER INJECTOR, C2-3510-ZM-646 3587 3500-25J-033
  • 177.
    T3 T3 T1 T1 NOTE 1 VENDOR 3510 00420 DX 3510 00481 XA FAULT 3510 00403 AI 3510 00420 FI 3510 00401 LIT 3510 00403 AIT 3510 00485 II 3510 00486 II 3510 00486 XA 3510 00411 FIC M 3510 00403 AE 3510 00485 HS J/SP 3510 00410 LIT 3510 00413 PI 3510 00405 PIT 3510 00486 HS J/SP 3510 00481 HS 3510 00482 HS 3510 00414 FIT 3510 00420 DE 3510 00404 FIT 3510 00402 LE 3510 00420 FY 3510 00410 LIC H,P2 L, P2 LL, P2 3510 00482 XA FAULT 3510 00402 LI 3510 00410 LE M 3510 00411 FIT 3510 00420 FIT M 3510 00485 XA 3510 00409 ZS 3510 00409 XA 3510 00481 II 3510 00414 FI 3510 00419 XA 3510 00420 DIT 3510 00419 ZS 3510 00404 FI L 3510 00420 DI 3510 00402 LT 3510 00482 II 3510 00401 LIC 3510 00420 WQI MASS FLOW 3510 00415 PI L, P2 3510 00418 XA 3510 00401 LE 3510 00418 ZS 3510 00417 XA 3510 00407 XA 3510 00407 ZS 3510 00417 ZS 3510 00405 PI L, P2 3510 00415 PIT 3510 00408 XA 3510 00408 ZS MIN. OP/CL GLAND SEAL WATER 3314 3900-25J-023 MO ROUGHER CONC. LAUNDER CONTINUE, C2-3510-LA-600 1852 3500-25J-003 MO ROUGHER TAILING MO ROUGHER SCAVENGER FLOTATION CELL NO.6, 1871 3500-25J-005 MO ROUGHER MO ROUGHER CONCENTRATE SAMPLER, C2-3510-SA-612 1858 3500-25J-006 MO ROUGHER TAILING MO ROUGHER FLOTATION CELL NO.3, C2-3510-CF-703 1069 3500-25J-003 MO ROUGHER TAILING MO ROUGHER FLOTATION CELL NO.3, C2-3510-CF-703 1068 3500-25J-003 MO ROUGHER CONC. MO ROUGHER ANALYZER, C2-3510-AZ-601 1878 3500-25J-006 NITROGEN NITROGEN VAPORIZER, C2-3510-ZM-528 1849 3500-25J-041 PROCESS WATER 1064 MO ROUGHER TAILING MO ROUGHER SCAVENGER FLOTATION CELL NO.6, 1062 3500-25J-005 SPENT PROCESS GAS EQUALIZATION HEADER 1065 3500-25J-003 SPENT PROCESS GAS EQUALIZATION HEADER 1868 3500-25J-005 CONCENTRATE J/SP H, P2 L, P2 L, P2 LL, P1 MIN. NOTE 1 AFD ORP NOTES: 1. MINIMUM DISTANCE TO BE MAINTAINED BETWEEN VALVE AND FITTINGS OR FLANGES. VENDOR VENDOR ORP L, P2 LL, P1 MIN. AFD VENDOR J/SP VENDOR C2-3510-CF-706 C2-3510-CF-706 VENDOR OP/CL OP/CL FAULT FAULT OP/CL OP/CL OP/CL AG KM LT ISSUED FOR CLIENT REVIEW 22-Dec-11 B RP ISSUED FOR COMBINED REVIEW 30-Jun-11 A 12/22/2011 K. MUNDY A. GUNSON A. REGNAULT L. TAMELIN 12/22/2011 11:50:11 AM WBS: 3510 B PIPING AND INSTRUMENTATION DIAGRAM MOLY PLANT 3500-25J-004 MO ROUGHER FLOTATION CELLS 4 TO 5 12"x6" FC FI FI 3510 00409 XV + FI 2"x1-1/4" 3510 00401 A LV + C2-3510-PP-602 FI FI V V C2-3510-PP-600 3"x2" 3"x1" 3510 00420 FE + 1-1/2"x1" 2"x1" 12"x6" V1 12" 1"x1/2" 3510 00419 XV + 2"x1" 3510 00401 B LV + C2-3510-BX-600 3510 00411 FV + 3"x2" 3510 00404 FE + V1 3510 00408 XV + V1 3"x1" 3510 00411 FE + 12" 3510 00407 XV + 1"x1-1/4" 3510 00418 XV + FI 3510 00414 FE + V1 V1 C2-3510-CF-704 C2-3510-CF-705 3510 00417 XV + 3510-WR-1804-C1A-4"-N 3510-SL-1418-R1A-12"-N SIZE: MATERIAL: CAPACITY: TRIM: C2-3510-BX-600 MO ROUGHER CONCENTRATE PUMPBOX 3510-WR-1813-C1A-1"-N SIZE: C2-3510-CF-704 MO ROUGHER FLOTATION CELL NO.4 SIZE: C2-3510-CF-705 MO ROUGHER FLOTATION CELL NO.5 3510-SL-1416-R1A-16"-N 3510-SL-1415-R1A-16"-N 3510-WG-1038-C1A-2"-N 3510-PG-1008-C1A-4"-N 3510-WG-1077-C1A-1"-N 3510-WR-1812-C1A-2"-N 3510-WR-1810-C1A-2"-N 2"x1" 3510-SL-1412-R1A-16"-N SIZE: MATERIAL: MOTOR: C2-3510-PP-602 MO ROUGHER CONCENTRATE PUMP NO. 2 ES 3510-WR-1804-C1A-4"-N ES 3510-SL-1417-R1A-12"-N 3510-PG-1004-C1A-10"-N SIZE: C2-3510-LA-600 MO ROUGHER FLOTATION LAUNDER 3510-PG-1007-C1A-6"-N 3510-WR-1811-C1A-3"-N V1 C2-3510-LA-600 ES 3510-SL-1433-R1A-3"-N ES ES 3510-N2G-1003-C1D-1-1/2"-N ES 1-1/2"x1" SIZE: MATERIAL: MOTOR: C2-3510-PP-600 MO ROUGHER CONCENTRATE PUMP NO. 1 3510-PG-1004-C1A-10"-N D 4 F B A 3 2 1 5 6 8 E 7 C REV. APPROVED CHK. DES. REV. DATE REVISION DESCRIPTION CLIENT LEAD ENGINEER SCALE DRAWING NUMBER CHECK DESIGN CHECK DRAWING DESIGNED BY DRAWN BY APPROVAL DATE APPROVAL DATE APPROVED CHK. DES. REV. DATE REVISION DESCRIPTION REFERENCE DRAWING No. 1:100 0 1:200 5m 10m 0 5m 10m 15m 20m 1:500 10m 0 20m 30m 40m 50m 1:1000 0 100m 50m 1:20 0 0.5m 1m 1.5m 2m 0 1:25 0.5m 1m 1.5m 1:33 1/3 2.5m 2m 0 1m 2m 3m 0 1:50 1m 2m 3m 4m 5m CAD FILE NAME: P:0CAD000SPEM** MODEL UPDATED: DWG. FILE UPDATED: MANUAL CHANGES MADE: YES NO YES NO YES NO PROJECT MANAGER ENGINEERING MANAGER AREA PROJECTENGINEER REFERENCE DRAWINGS SAFETY SHARE: APPROVAL DATE CONTRACT NO. SAFETY SHARE : BA6CVA1.IGR NOTICE: THIS DRAWING HAS NOT BEEN PUBLISHED AND IS THE SOLE PROPERTY OF FLUOR AND IS LENT TO THE BORROWER FOR THEIR CONFIDENTIAL USE ONLY, AND IN CONSIDERATION OF THE LOAN OF THIS DRAWING, THE BORROWER PROMISES AND AGREES TO RETURN IT UPON REQUEST AND AGREES THAT IT WILL NOT BE REPRODUCED, COPIED LENT OR OTHERWISE DISPOSED OF DIRECTLY OR INDIRECTLY, NOR USED FOR ANY OTHER PURPOSE OTHER THAN WHICH IT IS FURNISHED. NONE Apr 2011 240K-C2- 3510-SL-1411-R1A-14"-N 3510-SL-1410-R1A-14"-N 3510-SL-1460-R1A-6"-N 3510-SL-1461-R1A-6"-N PROCESS WATER 4110 3900-25J-016 3510-WG-1038-C1A-2"-N
  • 178.
    3510-SL-1470-R1A-6"-N D 4 F B A 3 2 1 5 68 E 7 C REV. APPROVED CHK. DES. REV. DATE REVISION DESCRIPTION CLIENT LEAD ENGINEER SCALE DRAWING NUMBER CHECK DESIGN CHECK DRAWING DESIGNED BY DRAWN BY APPROVAL DATE APPROVAL DATE APPROVED CHK. DES. REV. DATE REVISION DESCRIPTION REFERENCE DRAWING No. 1:100 0 1:200 5m 10m 0 5m 10m 15m 20m 1:500 10m 0 20m 30m 40m 50m 1:1000 0 100m 50m 1:20 0 0.5m 1m 1.5m 2m 0 1:25 0.5m 1m 1.5m 1:33 1/3 2.5m 2m 0 1m 2m 3m 0 1:50 1m 2m 3m 4m 5m CAD FILE NAME: P:0CAD000SPEM** MODEL UPDATED: DWG. FILE UPDATED: MANUAL CHANGES MADE: YES NO YES NO YES NO PROJECT MANAGER ENGINEERING MANAGER AREA PROJECTENGINEER REFERENCE DRAWINGS SAFETY SHARE: APPROVAL DATE CONTRACT NO. SAFETY SHARE : BA6CVA1.IGR NOTICE: THIS DRAWING HAS NOT BEEN PUBLISHED AND IS THE SOLE PROPERTY OF FLUOR AND IS LENT TO THE BORROWER FOR THEIR CONFIDENTIAL USE ONLY, AND IN CONSIDERATION OF THE LOAN OF THIS DRAWING, THE BORROWER PROMISES AND AGREES TO RETURN IT UPON REQUEST AND AGREES THAT IT WILL NOT BE REPRODUCED, COPIED LENT OR OTHERWISE DISPOSED OF DIRECTLY OR INDIRECTLY, NOR USED FOR ANY OTHER PURPOSE OTHER THAN WHICH IT IS FURNISHED. NONE Apr 2011 240K-C2- 3510 00501 LIC 3510 00501 LIT 3510 00581 II 3510 00581 XA 3510 00502 LT 3510 00581 HS 3510 00502 LE 3510 00501 LE MIN. J/SP VENDOR VENDOR 1"x1/2" C2-3510-CF-706 12" 3510 00501 B LV + 3510 00501 A LV + 3510 00503 AE 3510 00503 AIT 3510 00503 AI 3510 00582 HS J/SP C2-3510-CF-707 VENDOR H, P2 L, P2 12" ORP ORP C2-3510-LA-612 3510 00507 XV + FI V1 3510 00517 XV + FI V1 3510 00585 II 3510 00585 XA 3510 00585 HS J/SP 3510 00586 II 3510 00586 XA 3510 00586 HS J/SP T3 3510 00515 PI 3510 00514 FI 3510 00515 PIT 3510 00514 FIT M 3510 00514 FE + T3 3510 00505 PI 3510 00504 FI 3510 00505 PIT 3510 00504 FIT M L, P2 3510 00504 FE + 2"x1" 3510 00510 LE 3510 00510 LIT 3510 00510 LIC 3510 00508 XV + FI V1 3510 00518 XV + FI V1 3510 00509 XV + FI V1 FI V1 3510 00519 XV + 3510 00513 PI M 3510 00520 FIT 3510 00520 DE 3510 00520 DIT 3510 00520 FI 3510 00520 FY 3510 00520 DI 3510 00520 WQI 3510 00520 FE + L, P2 AFD AFD 4"x8" 4"x8" C2-3510-BX-603 C2-3510-PP-606 C2-3510-PP-605 VENDOR 3510 00511 FIC 3510 00511 FIT 3510 00511 FE + 3510 00511 FV + FAULT L, P2 2"x1-1/2" 2"x1-1/2" 2"x1" 2"x1" NOTES: 1. MINIMUM DISTANCE TO BE MAINTAINED BETWEEN VALVE AND FITTINGS OR FLANGES. MASS FLOW H,P2 L, P2 LL, P2 3510 00582 II 3510 00582 XA FAULT 3510 00502 LI NOTE 1 NOTE 1 L, P2 LL, P1 L, P2 LL, P1 MIN. MIN. SIZE: C2-3510-LA-612 MO ROUGHER SCAVENGER FLOTATION LAUNDER SIZE: MOTOR: C2-3510-CF-706 MO ROUGHER SCAVENGER FLOTATION CELL NO.6 SIZE: MOTOR: C2-3510-CF-707 MO ROUGHER SCAVENGER FLOTATION CELL NO.7 1-1/2"x1" SPENT PROCESS GAS EQUALIZATION HEADER 1868 3500-25J-004 NITROGEN NITROGEN VAPORIZER, C2-3510-ZM-528 1869 3500-25J-041 MO ROUGHER SCAV. CONC. CU-MO CONC. THICKENER FEED BOX, C2-3510-BX-003 1855 3500-25J-001 MO ROUGHER TAILING MO ROUGHER CELL NO.5, C2-3510-CF-705 1871 3500-25J-004 MO ROUGHER SCAV. TAIL. MO ROUGHER TAILING PUMP BOX, C2-3510-BX-604 1876 3500-25J-025 MO ROUGHER FEED MO ROUGHER ANALYZER, C2-3520-AZ-601 1885 3500-25J-006 GLAND SEAL WATER 1063 3900-25J-023 T1 MO ROUGHER TAILING MO ROUGHER CELL NO.5, C2-3510-CF-705 1062 3500-25J-004 T1 3510-SL-1434-R1A-2"-N SIZE: MATERIAL: CAPACITY: TRIM: C2-3510-BX-603 MO ROUGHER SCAVENGER CONCENTRATE PUMPBOX 3510-SL-1427-R1A-8"-N SIZE: MATERIAL: MOTOR: C2-3510-PP-605 MO ROUGHER SCAVENGER CONCENTRATE PUMP NO. 1 3510-WR-1804-C1A-4"-N ES ES 3510-WG-1078-C1A-1"-N 3510-SL-1430-R1A-10"-N 3510-N2G-1004-C1D-2"-N 3510-SL-1429-R1A-8"-N ES 3510-WR-1814-C1A-2"-N 3510-WR-1815-C1A-2"-N 3510-WR-1816-C1A-1"-N 3510-WG-1038-C1A-2"-N ES 3510-SL-1422-R1A-10"-N 3510-SL-1428-R1A-8"-N SIZE: MATERIAL: MOTOR: C2-3510-PP-606 MO ROUGHER SCAVENGER CONCENTRATE PUMP NO. 2 3510-SL-1426-R1A-8"-N ES 3510-PG-1010-C1A-4"-N 3510-PG-1004-C1A-10"-N ES SPENT PROCESS GAS EQUALIZATION HEADER 1875 3500-25J-025 AG KM LT ISSUED FOR CLIENT REVIEW 22-Dec-11 B RP ISSUED FOR COMBINED REVIEW 30-Jun-11 A 12/22/2011 K. MUNDY A. GUNSON A. REGNAULT L. TAMELIN 12/22/2011 2:13:53 PM WBS: 3510 B PIPING AND INSTRUMENTATION DIAGRAM MOLY PLANT 3500-25J-005 MO ROUGHER SCAVENGER FLOTATION 3510 00509 ZS 3510 00509 XA 3510 00519 ZS 3510 00519 XA FAULT FAULT 3510 00518 ZS 3510 00518 XA OP/CL 3510 00517 ZS OP/CL 3510 00507 ZS OP/CL 3510 00517 XA 3510 00507 XA 3510 00508 ZS 3510 00508 XA OP/CL OP/CL 3510 00520 DX FC SAMPLE RETURN 3510-PG-1009-C1A-6"-N V V NAHS SOLUTION NAHS INJECTOR NO.5, C2-3510-ZM-631 3562 3500-25J-037 3510-SL-1469-R1A-6"-N 3510-SL-1420-R1A-12"-N 3510-SL-1421-R1A-12"-N 3510-PG-1042-C1A-4"-N 3510-WR-1813-C1A-3"-N 3510-RC-1151-C1D-1"-N DEFOAMER INJECTOR, C2-3510-ZM-648 2885 3500-25J-033 3510-RS-1057-S1B-1"-N PROCESS WATER 1874 3900-25J-016
  • 179.
    NOTE 1 3510 00601 AIT 3510 00601 AE 3510 00601 AI MO ROUGHERTAILING MO ROUGHER TAILING PUMPBOX, C2-3510-BX-604 1884 3500-25J-025 MO ROUGHER FEED MO ROUGHER SCAV. CONC. PUMPBOX, C2-3510-BX-603 1885 3500-25J-005 MO ROUGHER CONC. 1ST CLEANER CONDITIONING, C2-3510-TK-603 1886 3500-25J-007 MO ROUGHER CONC. ROUGHER CONC. PUMPS, C2-3510-PP-600/602 1858 3500-25J-004 MO ROUGHER FEED MO ROUGHER FEED SAMPLER, C2-3510-SA-611 1881 3500-25J-002 CU CONCENTRATE MO ROUGHER TAILING SAMPLER, C2-3510-SA-613 1880 3500-25J-025 MO ROUGHER CONC. MO ROUGHER CONC. PUMPBOX, C2-3510-BX-600 1878 3500-25J-004 FLUOR VENDOR VENDOR NOTE 1 PH FLUOR NOTE 1 H, P2 L, P2 C2-3510-AZ-601 C2-3510-SA-612 V 3510-WR- -C1A-1-1/2"-N 3510-WF-1424-C1A-1/2"-N 3510-SL-1417-R1A-12"-N 3510-SL-1403-R1A-3"-N 3510-SL-1432-R1A-12"-N 3510-WF-1423-C1A-4"-N 3510-SL-1413-R1A-3"-N SIZE: C2-3510-AZ-601 MO ROUGHER IN-STREAM ANALYZER 3510-SL-1435-R1A-4"-N AG KM LT ISSUED FOR CLIENT REVIEW 22-Dec-11 B RP ISSUED FOR COMBINED REVIEW 30-Jun-11 A 12/22/2011 K. MUNDY A. GUNSON A. REGNAULT L. TAMELIN 12/22/2011 2:14:40 PM WBS: 3510 B PIPING AND INSTRUMENTATION DIAGRAM MOLY PLANT 3500-25J-006 MO ROUGHER CONCENTRATE SAMPLING 3510-SL-1557-R1A-4"-N 3510-SL-1434-R1A-2"-N SIZE: MATERIAL: CAPACITY: TRIM: C2-3510-SA-612 MO ROUGHER CONCENTRATE SAMPLER ES 3510-SL-1433-R1A-3"-N D 4 F B A 3 2 1 5 6 8 E 7 C REV. APPROVED CHK. DES. REV. DATE REVISION DESCRIPTION CLIENT LEAD ENGINEER SCALE DRAWING NUMBER CHECK DESIGN CHECK DRAWING DESIGNED BY DRAWN BY APPROVAL DATE APPROVAL DATE APPROVED CHK. DES. REV. DATE REVISION DESCRIPTION REFERENCE DRAWING No. 1:100 0 1:200 5m 10m 0 5m 10m 15m 20m 1:500 10m 0 20m 30m 40m 50m 1:1000 0 100m 50m 1:20 0 0.5m 1m 1.5m 2m 0 1:25 0.5m 1m 1.5m 1:33 1/3 2.5m 2m 0 1m 2m 3m 0 1:50 1m 2m 3m 4m 5m CAD FILE NAME: P:0CAD000SPEM** MODEL UPDATED: DWG. FILE UPDATED: MANUAL CHANGES MADE: YES NO YES NO YES NO PROJECT MANAGER ENGINEERING MANAGER AREA PROJECTENGINEER REFERENCE DRAWINGS SAFETY SHARE: APPROVAL DATE CONTRACT NO. SAFETY SHARE : BA6CVA1.IGR NOTICE: THIS DRAWING HAS NOT BEEN PUBLISHED AND IS THE SOLE PROPERTY OF FLUOR AND IS LENT TO THE BORROWER FOR THEIR CONFIDENTIAL USE ONLY, AND IN CONSIDERATION OF THE LOAN OF THIS DRAWING, THE BORROWER PROMISES AND AGREES TO RETURN IT UPON REQUEST AND AGREES THAT IT WILL NOT BE REPRODUCED, COPIED LENT OR OTHERWISE DISPOSED OF DIRECTLY OR INDIRECTLY, NOR USED FOR ANY OTHER PURPOSE OTHER THAN WHICH IT IS FURNISHED. NONE Apr 2011 240K-C2- PROCESS WATER 3321 3900-25J-016 NOTE: 1. PROVISION FOR AUTOMATED SHIFT SAMPLES. FRESH WATER 3053 5100-25J-015
  • 180.
    T1 T1 T1 T1 T1 T1 T1 VENDOR VENDOR 3510 00787 XA 3510 00787 II 3510 00787 HS 3510 00705 AE 3510 00705 AIT 3510 00782 HS 3510 00703 AIT 3510 00783 II 3510 00703 AE 3510 00701 LE 3510 00702 LE 3510 00781 HS 3510 00702 LT 3510 00701 LIT 3510 00783 XA 3510 00783 HS 3510 00702 LI 3510 00782 XA FAULT 3510 00782 II 3510 00703 AI 3510 00781 XA FAULT 3510 00781 II 3510 00701 LIC 3510 00714 FIC 3510 00714 FIT 3510 00704 FIT 3510 00704 FIC 3510 00785 XAFAULT 3510 00785 II 3510 00785 HS 3510 00713 AIT 3510 00713 AI 3510 00713 AE 3510 00784 XA FAULT 3510 00711 LE 3510 00784 II 3510 00712 LE 3510 00784 HS 3510 00712 LT 3510 00711 LIT 3510 00711 LIC 3510 00712 LI 3510 00786 HS 3510 00786 XA 3510 00786 II 3510 00705 AI MIN. MIN. SPENT PROCESS GAS EQUALIZATION HEADER 2492 3500-25J-011 PROCESS WATER 2493 3500-25J-011 MO 1ST CLEANER CONC. MO 1ST CLEANER LAUNDER, C2-3510-LA-615 CONTINUES 2494 3500-25J-011 MO 2ND CLEANER TAILING MO 2ND CLEANER TAILING PUMPS, C2-3510-PP-624/625 2485 3500-25J-016 MOLY COLLECTOR INJECTOR, C2-3510-ZM-640 2486 3500-25J-034 NAHS INJECTOR NO.2, C2-3510-ZM-664 2487 3500-25J-037 MO 1ST CLEANER TAIL. MO 1ST CLEANER FLOTATION CELL NO.5 & NO.6 2489 3500-25J-011 MO 1ST CLEANER TAIL. MO 1ST CLEANER FLOTATION CELL NO.5 & NO.6 2490 3500-25J-011 NA2SIO3 INJECTOR, C2-3510-ZM-644 2810 3500-25J-032 NITROGEN NITROGEN VAPORIZER, C2-3510-ZM-528 2850 3500-25J-041 NITROGEN NITROGEN VAPORIZER, C2-3510-ZM-528 2848 3500-25J-041 MO ROUGHER CONC. ROUGHER FLOTATION CONC. SAMPLER, C2-3510-SA-612 1886 3500-25J-006 CO2 GAS CO2 VAPORIZER, C2-3510-ZM-527 3341 3500-25J-036 FAULT J/SP J/SP J/SP H, P2 L, P2 VENDOR VENDOR VENDOR J/SP J/SP ORP VENDOR H, P2 L, P2 VENDOR VENDOR ORP FAULT J/SP FAULT J/SP HH, P1 N9 N12 3510 00704 FV + 3510 00714 FV + 2"x1/2" C2-3510-CF-713 C2-3510-CF-712 12" 12" 2"x1" 2"x1" 3510 00701 A LV + 3510 00701 B LV + C2-3510-CF-711 2"x1/2" C2-3510-TK-603 C2-3510-AG-603 C2-3510-LA-615 SIZE: MATERIAL: CAPACITY: TRIM: C2-3510-TK-603 MO 1ST CLEANER CONDITIONING TANK SIZE: MOTOR: C2-3510-AG-603 MO 1ST CLEANER CONDITIONING TANK AGITATOR SIZE: MOTOR: C2-3510-CF-711 MO 1ST CLEANER FLOTATION CELL NO. 1 SIZE: MOTOR: C2-3510-CF-712 MO 1ST CLEANER FLOTATION CELL NO. 2 SIZE: MOTOR: C2-3510-CF-713 MO 1ST CLEANER FLOTATION CELL NO. 3 SIZE: MOTOR: C2-3510-CF-714 MO 1ST CLEANER FLOTATION CELL NO. 4 SIZE: C2-3510-LA-615 MO 1ST CLEANER FLOTATION LAUNDER ES AG KM LT ISSUED FOR CLIENT REVIEW 22-Dec-11 B RP ISSUED FOR COMBINED REVIEW 30-Jun-11 A 12/22/2011 K. MUNDY A. GUNSON A. REGNAULT L. TAMELIN 12/22/2011 1:07:29 PM WBS: 3510 B PIPING AND INSTRUMENTATION DIAGRAM MOLY PLANT 3500-25J-007 MO FIRST CLEANER CELLS 1 TO 4 3510-SL-1506-R1A-6"-N 3510-SL-1432-R1A-12"-N 3510-RC-1163-C1D-1"-N 3510-RS-1058-S1B-1"-N 3510-RS-1015-C1A-2"-N 3510-WR- -C1A-4"-N 3510-PG-1011-C1A-10"-N 3510-WR- -C1A-4"-N N3 M1 N14 N4 N11 N10 N8 N6 N5 N7 12" 12" 3510 00711 A LV + 3510 00711 B LV + 2"x1" C2-3510-CF-714 2"x1" 3510 00704 FE + ES 1-1/2"x1" 1-1/2"x1" 3510-N2G-1005-C1D-1-1/2"-N 3510-PG-1012-C1A-6"-N 3510-PG-1013-C1A-6"-N 3510 00714 FE + 3510-N2G-1006-C1D-1-1/2"-N 3510-PG-1011-C1A-6"-N ES 1-1/2"x1" 1-1/2"x1" D 4 F B A 3 2 1 5 6 8 E 7 C REV. APPROVED CHK. DES. REV. DATE REVISION DESCRIPTION CLIENT LEAD ENGINEER SCALE DRAWING NUMBER CHECK DESIGN CHECK DRAWING DESIGNED BY DRAWN BY APPROVAL DATE APPROVAL DATE APPROVED CHK. DES. REV. DATE REVISION DESCRIPTION REFERENCE DRAWING No. 1:100 0 1:200 5m 10m 0 5m 10m 15m 20m 1:500 10m 0 20m 30m 40m 50m 1:1000 0 100m 50m 1:20 0 0.5m 1m 1.5m 2m 0 1:25 0.5m 1m 1.5m 1:33 1/3 2.5m 2m 0 1m 2m 3m 0 1:50 1m 2m 3m 4m 5m CAD FILE NAME: P:0CAD000SPEM** MODEL UPDATED: DWG. FILE UPDATED: MANUAL CHANGES MADE: YES NO YES NO YES NO PROJECT MANAGER ENGINEERING MANAGER AREA PROJECTENGINEER REFERENCE DRAWINGS SAFETY SHARE: APPROVAL DATE CONTRACT NO. SAFETY SHARE : BA6CVA1.IGR NOTICE: THIS DRAWING HAS NOT BEEN PUBLISHED AND IS THE SOLE PROPERTY OF FLUOR AND IS LENT TO THE BORROWER FOR THEIR CONFIDENTIAL USE ONLY, AND IN CONSIDERATION OF THE LOAN OF THIS DRAWING, THE BORROWER PROMISES AND AGREES TO RETURN IT UPON REQUEST AND AGREES THAT IT WILL NOT BE REPRODUCED, COPIED LENT OR OTHERWISE DISPOSED OF DIRECTLY OR INDIRECTLY, NOR USED FOR ANY OTHER PURPOSE OTHER THAN WHICH IT IS FURNISHED. NONE Apr 2011 240K-C2- 3510 00707 AE 3510 00707 AIT 3510 00707 AI 3510 00708 AE 3510 00708 AIT 3510 00708 AI ES H, P2 H, P2 L, P2 H2S PH FC FC C V V V V 3510-WR-1321-C1A-4"-N 3510-PG-1002-CIA-2"-N 3510-WR-1825-C1A-2"-N 3510-WR-1826-C1A-2"-N 3510-WR-1827-C1A-2"-N 3510-WR-1828-C1A-2"-N 3510-WR-1829-C1A-2"-N 3510-WR-1830-C1A-2"-N LAUNDER 3510-SL-1503-R1A-6"-N 3510-SL-1502-R1A-6"-N 3510-SL-1440-R1A-12"-N 3510-SL-1439-R1A-12"-N 3510-SL-1438-R1A-12"-N 3510-SL-1437-R1A-12"-N 3510-RC-1150-C1D-1"-N 3510-SL-1491-R1A-6"-N 3510-SL-1490-R1A-6"-N DEFOAMER INJECTOR, C2-3510-ZM-647 2882 3500-25J-033 PROCESS WATER 4221 3900-25J-016 CONC. CLARI. O/F CLARIFIER O/F TRANSFER PUMPS, C2-3610-PP-008/009 4140 3600-25J-004 3510-WR- -C1A-4"-N
  • 181.
    3510-PG-1016-C1A-4"-N D 4 F B A 3 2 1 5 68 E 7 C REV. APPROVED CHK. DES. REV. DATE REVISION DESCRIPTION CLIENT LEAD ENGINEER SCALE DRAWING NUMBER CHECK DESIGN CHECK DRAWING DESIGNED BY DRAWN BY APPROVAL DATE APPROVAL DATE APPROVED CHK. DES. REV. DATE REVISION DESCRIPTION REFERENCE DRAWING No. 1:100 0 1:200 5m 10m 0 5m 10m 15m 20m 1:500 10m 0 20m 30m 40m 50m 1:1000 0 100m 50m 1:20 0 0.5m 1m 1.5m 2m 0 1:25 0.5m 1m 1.5m 1:33 1/3 2.5m 2m 0 1m 2m 3m 0 1:50 1m 2m 3m 4m 5m CAD FILE NAME: P:0CAD000SPEM** MODEL UPDATED: DWG. FILE UPDATED: MANUAL CHANGES MADE: YES NO YES NO YES NO PROJECT MANAGER ENGINEERING MANAGER AREA PROJECTENGINEER REFERENCE DRAWINGS SAFETY SHARE: APPROVAL DATE CONTRACT NO. SAFETY SHARE : BA6CVA1.IGR NOTICE: THIS DRAWING HAS NOT BEEN PUBLISHED AND IS THE SOLE PROPERTY OF FLUOR AND IS LENT TO THE BORROWER FOR THEIR CONFIDENTIAL USE ONLY, AND IN CONSIDERATION OF THE LOAN OF THIS DRAWING, THE BORROWER PROMISES AND AGREES TO RETURN IT UPON REQUEST AND AGREES THAT IT WILL NOT BE REPRODUCED, COPIED LENT OR OTHERWISE DISPOSED OF DIRECTLY OR INDIRECTLY, NOR USED FOR ANY OTHER PURPOSE OTHER THAN WHICH IT IS FURNISHED. NONE Apr 2011 240K-C2- T3 T3 C2-3510-PP-609 C2-3510-PP-610 3510 01185 II 3510 01185 XA 3510 01185 HS J/SP AFD 3510 01186 II 3510 01186 XA 3510 01186 HS J/SP AFD C2-3510-BX-617 N9 N5 N11 N6 N2 N1 N4 3510 01110 LE 3510 01110 LT 3510 01110 A LI 3510 01110 LIC SIZE: MATERIAL: CAPACITY: TRIM: C2-3510-BX-617 MO 1ST CLEANER TAILING PUMPBOX SIZE: MATERIAL: MOTOR: C2-3510-PP-609 MO 1ST CLEANER TAILING PUMP NO. 1 SIZE: MATERIAL: MOTOR: C2-3510-PP-610 MO 1ST CLEANER TAILING PUMP NO. 2 SIZE: MOTOR: C2-3510-CF-715 MO 1ST CLEANER FLOTATION CELL NO. 5 SIZE: MOTOR: C2-3510-CF-717 MO 1ST CLEANER FLOTATION CELL NO. 7 C2-3510-CF-715 C2-3510-CF-717 MO 1ST CLEANER TAILING MO 1ST CLEANER FLOTATION CELL 4, C2-3510-CF-714 2489 3500-25J-007 MO 1ST CLEANER TAILING MO 1ST CLEANER FLOTATION CELL 4, C2-3510-CF-714 2490 3500-25J-007 T1 T1 T1 3510 01101 LE 3510 01102 LE 3510 01101 A LV + 3510 01101 B LV + 3510 01103 AIT 3510 01103 AI 3510 01103 AE ORP H, P2 L, P2 3510 01102 LT 3510 01101 LIT 3510 01101 LIC 3510 01102 LI 3510 01183 II 3510 01183 XA 3510 01183 HS FAULT J/SP 3510 01181 II 3510 01181 XA 3510 01181 HS FAULT J/SP 3510 01184 II 3510 01184 XA 3510 01184 HS FAULT J/SP 3510 01105 PIT 3510 01105 PI M 3510 01104 FIT 3510 01104 FI 3510 01104 FE + ES 3510 01115 PIT 3510 01115 PI M 3510 01114 FIT 3510 01114 FI 3510 01114 FE + ES L, P2 LL, P1 L, P2 L, P2 LL, P1 L, P2 3510 01107 XV + 3510 01117 XV + 3510 01108 XV + 3510 01113 PI M 3510 01120 FIT 3510 01120 FI 3510 01120 FY 3510 01120 DE 3510 01120 DIT 3510 01120 DI 3510 01120 WQI 3510 01120 DX ES ES 3510 01120 FE + MO 1ST CLEANER TAILING CU MO THICKENER FEED BOX, C2-3510-BX-003 1854 3500-25J-001 3510 01109 XV + 3510 01119 XV + 3510 01118 XV + MO 1ST CLEANER CELL MO 1ST CLEANER LAUNDER, C2-3510-LA-615, CONTINUES 2494 3500-25J-007 MO INTERMEDIATE THICKENER O/F, 2497 3500-25J-014 SPENT PROCESS GAS EQUALIZATION HEADER 2492 3500-25J-007 PROCESS WATER 2493 3500-25J-007 MO 1ST CLEANER CONC. MO 2ND CLEANER FEED PUMPBOX, C2-3510-BX-609 2499 3500-25J-016 (LAUNDER) VENDOR 3510 01112 AE 3510 01112 AI 3510 01112 AIT H, P2 LL, P1 L, P2 H, P2 MIN MIN MIN MIN MIN MIN 3510-WR-1851-C1A-8"-N 3510-SL-1449-R1A-8"-N 3510-SL-1448-R1A-8"-N 3510-SL-1451-R1A-6"-N 3510-SL-1450-R1A-6"-N MIN MIN H2S 3510-PG-1015-C1A-6"-N 1-1/2"x1" 1-1/2"x1" 3510 01111 FE + 3510 01111 FIC 3510 01111 FIT NITROGEN NITROGEN VAPORIZER, C2-3510-ZM-528 2837 3500-25J-041 ES AG KM LT ISSUED FOR CLIENT REVIEW 22-Dec-11 B RP ISSUED FOR COMBINED REVIEW 30-Jun-11 A 12/22/2011 K. MUNDY A. GUNSON A. REGNAULT L. TAMELIN 12/22/2011 2:16:21 PM WBS: 3510 B PIPING AND INSTRUMENTATION DIAGRAM MOLY PLANT 3500-25J-011 MO FIRST CLEANER CELLS 5 TO 7 3510 01111 FV + 3510 01119 ZS 3510 01109 XA 3510 01119 XA OP/CL 3510 01109 ZS OP/CL MASSFLOW FAULT FAULT 3510 01107 ZS OP/CL 3510 01117 ZS OP/CL 3510 01107 XA 3510 01108 XA 3510 01117 XA 3510 01108 ZS OP/CL 3510 01118 ZS OP/CL 3510 01118 XA GLAND SEAL WATER 3322 3900-25J-023 FI FI NC FI FI FI V V VENDOR T1 3510 01182 II 3510 01182 XA 3510 01182 HS FAULT J/SP NAHS SOLUTION NAHS INJECTOR NO.6, C2-3510-ZM-632 3566 3500-25J-037 FC C2-3510-CF-716 3510-WG-1041-C1A-1-1/2"-N 3510-PG-1011-C1A-10"-N C2-3520-TK-602 3510-WR- -C1A-4"-N SIZE: MOTOR: C2-3510-CF-716 MO 1ST CLEANER FLOTATION CELL NO. 6 3510-RC-1059-S1B-1"-N 3510-N2G-1007-C1D-1-1/2"-N 3510-WR-1831-C1A-2"-N 3510-WR-1832-C1A-2"-N 3510-WR-1833-C1A-2"-N 3510-WF-1079-C1A-1"-N 3510-WR-1835-C1A-2"-N 3510-SL-1441-R1A-8"-N 3510-SL-1442-R1A-8"-N 3510-SL-1443-R1A-8"-N 3510-WR-1834-C1A-2"-N C2-3510-LA-615 SIZE: C2-3510-LA-615 MO 1ST CLEANER FLOTATION LAUNDER 3510-WG- -C1A-1"-N CONC.
  • 182.
    D 4 F B A 3 2 1 5 68 E 7 C REV. APPROVED CHK. DES. REV. DATE REVISION DESCRIPTION CLIENT LEAD ENGINEER SCALE DRAWING NUMBER CHECK DESIGN CHECK DRAWING DESIGNED BY DRAWN BY APPROVAL DATE APPROVAL DATE APPROVED CHK. DES. REV. DATE REVISION DESCRIPTION REFERENCE DRAWING No. 1:100 0 1:200 5m 10m 0 5m 10m 15m 20m 1:500 10m 0 20m 30m 40m 50m 1:1000 0 100m 50m 1:20 0 0.5m 1m 1.5m 2m 0 1:25 0.5m 1m 1.5m 1:33 1/3 2.5m 2m 0 1m 2m 3m 0 1:50 1m 2m 3m 4m 5m CAD FILE NAME: P:0CAD000SPEM** MODEL UPDATED: DWG. FILE UPDATED: MANUAL CHANGES MADE: YES NO YES NO YES NO PROJECT MANAGER ENGINEERING MANAGER AREA PROJECTENGINEER REFERENCE DRAWINGS SAFETY SHARE: APPROVAL DATE CONTRACT NO. SAFETY SHARE : BA6CVA1.IGR NOTICE: THIS DRAWING HAS NOT BEEN PUBLISHED AND IS THE SOLE PROPERTY OF FLUOR AND IS LENT TO THE BORROWER FOR THEIR CONFIDENTIAL USE ONLY, AND IN CONSIDERATION OF THE LOAN OF THIS DRAWING, THE BORROWER PROMISES AND AGREES TO RETURN IT UPON REQUEST AND AGREES THAT IT WILL NOT BE REPRODUCED, COPIED LENT OR OTHERWISE DISPOSED OF DIRECTLY OR INDIRECTLY, NOR USED FOR ANY OTHER PURPOSE OTHER THAN WHICH IT IS FURNISHED. NONE Apr 2011 240K-C2- 3510 01211 LIT 3510 01212 LT 3510 01284 HS 2"x1" SIZE: C2-3510-LA-616 MO CLEANER SCAVENGER FLOTATION LAUNDER 3510 01212 LE SIZE: MOTOR: C2-3510-CF-724 MO CLEANER SCAVENGER FLOTATION CELL NO.4 3510 01284 II C2-3510-CF-724 SIZE: MOTOR: C2-3510-CF-723 MO CLEANER SCAVENGER FLOTATION CELL NO.3 3510 01211 LE 2"x1" SIZE: MOTOR: C2-3510-CF-722 MO CLEANER SCAVENGER FLOTATION CELL NO.2 FAULT 3510 01211 B LV + SIZE: MOTOR: C2-3510-CF-721 MO CLEANER SCAVENGER FLOTATION CELL NO.1 3510 01284 XA 3510 01213 AE 3510 01213 AI 3510 01211 A LV + 3510 01213 AIT 3510 01285 HS 12" 3510 01285 II 12" FAULT 3510 01285 XA C2-3510-CF-723 1"x1/2" 3510 01201 LIC 3510 01281 II FAULT 3510 01281 XA 3510 01203 AI 3510 01282 II FAULT 3510 01282 XA 3510 01202 LI 3510 01201 LIT 3510 01202 LT 3510 01281 HS 1"x1/2" 3510 01202 LE C2-3510-CF-721 3510 01201 LE 3510 01201 B LV + 3510 01203 AE 3510 01201 A LV + 3510 01203 AIT 3510 01282 HS 2"x1" VENDOR 12" VENDOR T1 12" C2-3510-CF-722 C2-3510-LA-616 FAULT J/SP ORP VENDOR VENDOR H, P2 L, P2 VENDOR ORP J/SP J/SP VENDOR VENDOR VENDOR H, P2 L, P2 J/SP J/SP MIN. MIN. 3510 01286 II 3510 01286 XA 3510 01286 HS 3510 01212 LI 3510 01211 LIC T1 FROTH PADDLE MOTOR 3510 01283 II 3510 01283 XA 3510 01283 HS FAULT J/SP 2"x1" 1" BA- MIN SPLIT RANGE SPLIT RANGE MIN. T1 T1 T1 T1 FROTH PADDLE MOTOR 3" KG- 3" KG- BA- BA- 1" BA- 1" BA- 1" BA- 3510-PG-1018-C1A-6"-N 3510-SL-1517-R1A-6"-N 3RD CLEANER TAILING 3RD CLEANER COLUMN CELL, C2-3510-CM-601 2230 3500-25J-017 PROCESS WATER 2496 3900-25J-016 PROCESS WATER 2500 3500-25J-013 SPENT PROCESS GAS EQUALIZATION HEADER 2501 3500-25J-013 MO CLEANER SCAV. TAIL. CLEANER SCAVENGER FLOTATION CELLS, 2502 3500-25J-013 MO CLEANER SCAV. TAIL. CLEANER SCAVENGER FLOTATION CELLS, 2503 3500-25J-013 MO CLEANER SCAV. CONC. MO CLEANER SCAVENGER FLOTATION LAUNDER 2504 3500-25J-013 R1A SLOPE R1A 3510-PG-1017-C1A-10"-N V V V V V V V V V V V V SPENT PROCESS GAS EQUALIZATION HEADER 2825 3500-25J-014 3510-PG-1024-C1A-4"-N 3510 01204 FE + 3510 01204 FIT 3510 01204 FIC 1-1/2"x1" 1-1/2"x1" 3510 01214 FE + 3510 01214 FIT 3510 01214 FIC 1-1/2"x1" 1-1/2"x1" NITROGEN NITROGEN VAPORIZER, C2-3510-ZM-528 2835 3500-25J-041 NITROGEN NITROGEN VAPORIZER, C2-3510-ZM-528 2836 3500-25J-041 3510-N2G-1009-C1D-1-1/2"-N 3510-N2G-1008-C1D-1-1/2"-N 3510-WR- -C1A-4"-N 3510-WR- -C1A-4"-N ES ES AG KM LT ISSUED FOR CLIENT REVIEW 22-Dec-11 B RP ISSUED FOR COMBINED REVIEW 30-Jun-11 A 12/22/2011 K. MUNDY A. GUNSON A. REGNAULT L. TAMELIN 12/22/2011 12:20:14 PM WBS: 3510 B PIPING AND INSTRUMENTATION DIAGRAM MOLY PLANT 3500-25J-012 MO CLEANER SCAVENGER CELLS 1 TO 4 3510 01214 FV + 3510 01204 FV + C2-3510-CF-725 C2-3510-CF-725 V V V V FC FC NAHS SOLUTION NAHS INJECTOR NO.8, C2-3510-ZM-634 3579 3500-25J-037 NAHS SOLUTION NAHS INJECTOR NO.7, C2-3510-ZM-633 3580 3500-25J-037 3510-RC-1061-S1B-1"-N 3510-RC-1060-S1B-1"-N 3510-WR-1836-C1A-2"-N 3510-WR-1837-C1A-2"-N 3510-WR-1838-C1A-1"-N 3510-PG-1019-C1D-6"-N 3510-WR-1837-C1A-2"-N 3510-N2G-1009-C1D-1-1/2"-N 3510-WR-1840-C1A-2"-N 3510-WR-1841-C1A-1"-N 3510-SL-1451-R1A-6"-N 3510-SL-1452-R1A-6"-N 3510-SL-1453-R1A-6"-N 3510-SL-1454-R1A-6"-N 3510-SL-1510-R1A-3"-N 3510-SL-1511-R1A-3"-N 3510-RS-1024-S1B-2"-N CONC. CLARIFIER O/F CLARIFIER O/F TRANSFER PUMPS, C2-3610-PP-008/009 4141 3600-25J-004 3510-WR- -C1A-4"-N SODIUM SILICATE SODIUM SILICATE INJECTOR, C2-3510-ZM-652 3793 3500-25J-032
  • 183.
    OP/CL D 4 F B A 3 2 1 5 68 E 7 C REV. APPROVED CHK. DES. REV. DATE REVISION DESCRIPTION CLIENT LEAD ENGINEER SCALE DRAWING NUMBER CHECK DESIGN CHECK DRAWING DESIGNED BY DRAWN BY APPROVAL DATE APPROVAL DATE APPROVED CHK. DES. REV. DATE REVISION DESCRIPTION REFERENCE DRAWING No. 1:100 0 1:200 5m 10m 0 5m 10m 15m 20m 1:500 10m 0 20m 30m 40m 50m 1:1000 0 100m 50m 1:20 0 0.5m 1m 1.5m 2m 0 1:25 0.5m 1m 1.5m 1:33 1/3 2.5m 2m 0 1m 2m 3m 0 1:50 1m 2m 3m 4m 5m CAD FILE NAME: P:0CAD000SPEM** MODEL UPDATED: DWG. FILE UPDATED: MANUAL CHANGES MADE: YES NO YES NO YES NO PROJECT MANAGER ENGINEERING MANAGER AREA PROJECTENGINEER REFERENCE DRAWINGS SAFETY SHARE: APPROVAL DATE CONTRACT NO. SAFETY SHARE : BA6CVA1.IGR NOTICE: THIS DRAWING HAS NOT BEEN PUBLISHED AND IS THE SOLE PROPERTY OF FLUOR AND IS LENT TO THE BORROWER FOR THEIR CONFIDENTIAL USE ONLY, AND IN CONSIDERATION OF THE LOAN OF THIS DRAWING, THE BORROWER PROMISES AND AGREES TO RETURN IT UPON REQUEST AND AGREES THAT IT WILL NOT BE REPRODUCED, COPIED LENT OR OTHERWISE DISPOSED OF DIRECTLY OR INDIRECTLY, NOR USED FOR ANY OTHER PURPOSE OTHER THAN WHICH IT IS FURNISHED. NONE Apr 2011 240K-C2- SPENT PROCESS GAS EQUALIZATION HEADER 2501 3500-25J-012 PROCESS WATER 2500 3500-25J-012 MO CLEANER SCAV. TAIL. CLEANER SCAVENGER FLOTATION CELL, 2502 3500-25J-012 MO CLEANER SCAV. TAIL. CLEANER SCAVENGER FLOTATION CELL, 2503 3500-25J-012 MO CLEANER SCAV. CONC. CLEANER SCAVENGER FLOT. LAUNDER, C2-3510-LA-616, 2504 3500-25J-012 2ND CLEANER FLOT. CONC. MO SECOND CLEANER CONCENTRATE LAUNDER, 2526 3500-25J-016 MO CLEANER SCAV. TAIL. MO SECOND CLEANER FLOTATION CELL, 2527 3500-25J-015 NITROGEN NITROGEN VAPORIZER, C2-3510-ZM-528 2831 3500-25J-041 AG KM LT ISSUED FOR CLIENT REVIEW 22-Dec-11 B RP ISSUED FOR COMBINED REVIEW 30-Jun-11 A 12/22/2011 K. MUNDY A. GUNSON A. REGNAULT L. TAMELIN 12/22/2011 2:19:38 PM WBS: 3510 B PIPING AND INSTRUMENTATION DIAGRAM MOLY PLANT 3500-25J-013 MO CLEANER SCAVENGER CELLS 5 TO7 GLAND SEAL WATER 3344 3900-25J-023 C2-3510-CF-731 721 TO 724 CONCENTRATE 3" 3510 01311 FE + 3510 01330 LIC ORP 3510 01339 XV + 3" KG- 3510 01310 A LI BY VENDOR 3510-N2G-1010-C1D-1-1/2"-N 3510 01332 PI MIN. 3510 01314 FE + 3510 01310 LT LL, P1 L, P2 H, P2 SIZE: MATERIAL: MOTOR: C2-3510-PP-615 MO CLEANER SCAVENGER TAILING PUMP NO. 1 ES 3510 01320 DX MIN 3510-N2G-1021-C1A-6"-N 3510 01385 XA TO FLOOR C2-3510-BX-606 3510 01312 PI L, P2 3510 01308 XV + 3510 01381 II MIN 3510 01301 LIT FROTHER PADDLE MOTOR 1-1/2" BA- 1-1/2" PL- 3510 01320 FY L, P2 LL, P1 3510 01320 FIT MIN 3" 3510 01320 FI L, P2 LL, P1 3510 01301 B LV + OP/CL VENDOR 3510 01308 ZS OP/CL 3510-WR-1846-C1A-1"-N 3510-SL-1465-R1A-8"-N 3510 01304 FI OP/CL 3510 01334 FE + 3510 01307 XA OP/CL ES FI J/SP OP/CL C2-3510-CF-726 3510 01381 HS OP/CL 3510-PG-1022-C1A-4"-N 3510 01305 PI 3" KG- M 3510 01301 LIC MIN 3510 01324 FE + 3510 01310 LE 1-1/2" PL- J/SP 3510 01383 II 1-1/2" PL- 3510 01385 HS 3510 01382 II 1-1/2" PL- FI 3510 01320 DIT 3510 01383 XA 3510-SL-1464-R1A-8"-N 3510 01320 FE + 3510 01314 FI 3510 01382 XA M FI FI L, P2 3510 01696 XA 1/2" BA- 3510 01315 PI 3510 01303 AE FI 3510 01319 XV + 3510 01310 LIC 3510 01696 II ES MASS FLOW 3510 01304 FIT 3510 01337 XV + 3510-SL-1462-R1A-10"-N 3510 01320 WQI 3510 01305 PIT 3510-WR-1845-C1A-1"-N 1-1/2" PL- M J/SP 3510 01317 XA N5 3510 01307 XV + 3510 01382 HS 3510 01303 AIT 3510 01318 XA 3510 01314 FIT C2-3510-CF-725 OP/CL 3510 01302 LE N4 3510-PG-1017-C1A-10"-N ES M 3510 01338 ZS MIN. N1 3510 01338 XA 3510 01301 LE 3510 01327 ZS OP/CL N2 C2-3510-PP-615 3510-RS-1062-S1B-1"-N 3510 01337 XA 3510 01315 PIT M 3510 01327 XA 3510 01330 A LI 1" BA- 3510 01328 ZS 3510 01330 LT 3510 01328 XA 3510 01340 FY 1-1/2" PL- M OP/CL J/SP V 1-1/2" PL- 3510 01329 ZS 3510 01696 HS V 3510 01328 XV + 3510-SL-1463-R1A-16"-N OP/CL 3510 01308 XA 3510 01311 FV + V 3510 01318 ZS 3510 01330 LE FAULT N12 1" BA- 3510 01329 XA FAULT V BA- 3510 01339 ZS 3510 01383 II 3510-WR-1320-C1A-2"-N 3510 01339 XA FI MIN 3510 01337 ZS 3510 01307 ZS H, P2 L, P2 BA- 3510-SL-1473-R1A-6"-N 3510 01311 FIC J/SP VENDOR 3510 01338 XV + 3510 01311 FIT 3510 01394 HS FAULT 1" BA- OP/CL 3510 01340 WQI MIN C2-3510-BX-605 N9 3510 01309 ZS 3510 01317 ZS AFD 1-1/2" PL- 3510 01319 ZS 3510 01340 DIT MIN 3510 01319 XA 3510 01340 DI FI TO FLOOR 3510-SL-1488-R1A-8"-N FI 3510 01309 XA 3510 01340 DE 3510-SL-1472-R1A-8"-N MIN ES R1A 3510 01394 II TO FLOOR V1 T1 3510 01333 PI SPLIT RANGE N6 T1 3510 01394 XA MIN. 3510 01329 XV + C2-3510-CF-727 T1 3510 01640 DX FAULT 3510 01318 XV + T3 3510 01340 FI 3510 01327 XV + N9 T3 3510 01340 FIT FI 3510-WG-1080-C1A-1-1/2"-N T3 3510 01324 FI FI (LAUNDER) 1-1/2" PL- BY VENDOR 3510 01324 FIT FI AFD 3" KG- T3 3510 01325 PI FAULT T1 3510 01320 DE FAULT 3510 01320 DI AFD C2-3510-PP-617 J/SP FAULT N1 ES 3510 01383 HS AFD FI 3510 01383 XA 3510 01304 FE + 1-1/2" PL- J/SP MASS FLOW C2-3510-PP-618 C2-3510-PP-616 FAULT 3510 01383 HS N2 3510 01386 XA 3510 01325 PIT MIN 3510 01309 XV + 3510 01386 II 3510 01334 FI BY VENDOR SIZE: MATERIAL: MOTOR: C2-3510-PP-618 MO CLEANER SCAVENGER CONCENTRATE PUMP NO. 2 J/SP 3510 01334 FIT BY VENDOR N4 SIZE: MATERIAL: MOTOR: C2-3510-PP-616 MO CLEANER SCAVENGER TAILING PUMP NO. 2 3510 01386 HS L, P2 LL, P1 L, P2 H, P2 3510-WG-1041-C1A-1-1/2"-N 3510 01340 FE + SIZE: MOTOR: C2-3510-CF-726 MO CLEANER SCAVENGER FLOTATION CELL NO.6 3510 01335 PI BY VENDOR 3510 01317 XV + SIZE: MATERIAL: MOTOR: C2-3510-PP-617 MO CLEANER SCAVENGER CONCENTRATE PUMP NO. 1 3510 01385 II L, P2 BA- 3510-SL-1471-R1A-8"-N SIZE: MATERIAL: CAPACITY: TRIM: C2-3510-BX-605 MO CLEANER SCAVENGER TAILING PUMPBOX 3510 01313 PI BY VENDOR 3510 01301 A LV + SIZE: MATERIAL: CAPACITY: TRIM: C2-3510-BX-606 MO CLEANER SCAVENGER CONCENTRATE PUMPBOX 3510 01302 LI L, P2 LL, P1 3510-WR-1843-C1A-1"-N SIZE: MOTOR: C2-3510-CF-725 MO CLEANER SCAVENGER FLOTATION CELL NO.5 3510 01302 LIT BY VENDOR N5 ES 3510 01303 AI L, P2 LL, P1 1/2" BA- 3510 01335 PIT BY VENDOR SIZE: MOTOR: C2-3510-CF-727 MO CLEANER SCAVENGER FLOTATION CELL NO.7 ES ES 3510 01381 XA MIN NAHS SOLUTION NAHS INJECTOR NO.9, C2-3510-ZM-635 3584 3500-25J-037 C2-3510-CF-724 C2-3510-CF-724 MO CLEANER SCAV. CONC. MO INTERMEDIATE THICKENER FEED BOX, 2529 3500-25J-014 C2-3510-BX-616 C2-3510-LA-617 3510-SL-1474-R1A-6"-N 3510-WR- -C1A-2"-N 3510-WR-1842-C1A-2"-N 3510-RS-1062-S1B-1"-N 3510-WR-1844-C1A-2"-N 3510-WG-1083-C1A-1"-N 3510-WG-1082-C1A-1-1/2"-N 3510-WG-1081-C1A-1"-N 3510-SL-1466-R1A-8"-N 3510-SL-1467-R1A-8"-N 3510-SL-1414-R1A-3"-N 3510-SL-1458-R1A-10"-N 3510-SL-1455-R1A-8"-N 3510-SL-1456-R1A-8"-N 3510-SL-1457-R1A-8"-N C2-3510-LA-616 SIZE: C2-3510-LA-616 MO CLEANER SCAVENGER FLOTATION LAUNDER CONTINUES
  • 184.
    VENDOR 3510 01422 ZS 3510 01423 ZS 3510 01423 XA 3510 01419 ZS 3510 01409 ZS 3510 01409 XA 3510 01419 XA 3510 01412 ZS OP/CL 3510 01407 ZS 3510 01406 ZS OP/CL 3510 01416 ZS OP/CL 3510 01408 ZS 3510 01417 ZS 3510 01412 XA 3510 01407 XA 3510 01417 XA 3510 01406 XA 3510 01408 XA 3510 01416 XA 3510 01418 XA 3510 01418 ZS 3510 01401 DE 3510 01401 DX 3510 01481 HS J/SP 3510 01402 PSH P1 3510 01481 XA 3510 01401 PIC 3510 01402 PE 3510 01401 PT 3510 01484 HS J/SP 3510 01481 II 3510 01484 XA 3510 01484 II 3510 01410 ZI 3510 01411 OI M 3510 01482 HS 3510 01403 PAH 3510 01403 PSH 3510 01401 WQI 3510 01482 XA 3510 01403 PE 3510 01482 II 3510 01401 FY 3510 01483 HS J/SP 3510 01401 FIC 3510 01483 XA 3510 01401 DIC 3510 01483 II 3510 01401 DIT 3510 01402 PAH 3510 01401 FIT 3510 01422 XA TO FLOOR TO FLOOR SUMP TOFLOOR MO INTER. THICK. O/F MO 1ST CLEANER TAILING PUMPBOX, C2-3510-BX-617 2497 3500-25J-011 PROCESS WATER 3346 3900-25J-016 MO CONC. CLARIFIER O/F CONCENTRATE CLARIFIER O/F PUMPS, 2547 3600-25J-004 SPENT PROCESS GAS EQUALIZATION HEADER 2825 3500-25J-012 MO COLUMN AREA SUMP COLUMN FLOTATION AREA SUMP PUMP, C2-3510-PP-621 2543 3500-25J-021 MO CONC. THICK. O/F CLEANER SCAVENGER CONCENTRATE PUMPBOX, 2529 3500-25J-013 MO CONC. THICK. O/F THICKENER OVERFLOW TANK, C2-3510-TK-640 2237 3500-25J-024 MO INTER. THICK. U/F MO 2ND CLEANER THICKENER U/F ATRITOR TANK, 2224 3500-25J-017 (J) JF/JR SP FAULT MIN MIN. MIN HH, P1 H, P2 MIN LIFT POSITION 2% SLOPE FAULT MIN (VENDOR) MIN 5% SLOPE P1 MIN MIN C2-3510-TK-615 C2-3510-BX-606 OP/CL OP/CL OP/CL OP/CL FAULT OP/CL OP/CL OP/CL OP/CL 3510-WR-1847-C1A-4"-N 3510 01417 XV + 3510 01407 XV + FI 3510 01412 XV + 3510 01409 XV + SIZE: C2-3510-BX-616 MO INTERMEDIATE THICKENER FEED BOX FI 3510 01406 XV + SIZE: 20 m DIA. MOTOR: C2-3510-TM-602 MO INTERMEDIATE THICKENER MECHANISM SIZE: C2-3510-TK-602 MO INTERMEDIATE THICKENER FI 3510-WR-1848-C1A-2"-N 3510 01418 XV + 3510 01419 XV + FI FI FI FI 3510 01422 XV + FI C2-3510-BX-616 3510 01423 XV + 3510 01408 XV + C2-3510-TK-602 3510 01401 FE + FI FI 3510 01416 XV + C2-3510-TM-602 AG KM LT ISSUED FOR CLIENT REVIEW 22-Dec-11 B RP ISSUED FOR COMBINED REVIEW 30-Jun-11 A 12/22/2011 K. MUNDY A. GUNSON A. REGNAULT L. TAMELIN 12/22/2011 12:24:17 PM WBS: 3510 B PIPING AND INSTRUMENTATION DIAGRAM MOLY PLANT 3500-25J-014 MO INTERMEDIATE THICKENER NC 10"x3" 10"x3" ES 3510-SL- -R1A-6"-N ES 3510-SL-1481-R1A-3"-N 3510-SL-1478-R1A-3"-N 3510-PG-1024-C1A-6"-N 3510-SL-1479-R1A-3"-N 3510-WR-1851-C1A-8"-N 3510-WR-1849-C1A-2"-N 3510-SL-1464-R1A-8"-N 3510-WR-1847-C1A-4"-N V 3510-WR-1881-C1A-3"-N 3510-SL-1576-C1B-4"-N 3510-SL-1482-R1A-3"-N 3510-WR-1850-C1A-2"-N D 4 F B A 3 2 1 5 6 8 E 7 C REV. APPROVED CHK. DES. REV. DATE REVISION DESCRIPTION CLIENT LEAD ENGINEER SCALE DRAWING NUMBER CHECK DESIGN CHECK DRAWING DESIGNED BY DRAWN BY APPROVAL DATE APPROVAL DATE APPROVED CHK. DES. REV. DATE REVISION DESCRIPTION REFERENCE DRAWING No. 1:100 0 1:200 5m 10m 0 5m 10m 15m 20m 1:500 10m 0 20m 30m 40m 50m 1:1000 0 100m 50m 1:20 0 0.5m 1m 1.5m 2m 0 1:25 0.5m 1m 1.5m 1:33 1/3 2.5m 2m 0 1m 2m 3m 0 1:50 1m 2m 3m 4m 5m CAD FILE NAME: P:0CAD000SPEM** MODEL UPDATED: DWG. FILE UPDATED: MANUAL CHANGES MADE: YES NO YES NO YES NO PROJECT MANAGER ENGINEERING MANAGER AREA PROJECTENGINEER REFERENCE DRAWINGS SAFETY SHARE: APPROVAL DATE CONTRACT NO. SAFETY SHARE : BA6CVA1.IGR NOTICE: THIS DRAWING HAS NOT BEEN PUBLISHED AND IS THE SOLE PROPERTY OF FLUOR AND IS LENT TO THE BORROWER FOR THEIR CONFIDENTIAL USE ONLY, AND IN CONSIDERATION OF THE LOAN OF THIS DRAWING, THE BORROWER PROMISES AND AGREES TO RETURN IT UPON REQUEST AND AGREES THAT IT WILL NOT BE REPRODUCED, COPIED LENT OR OTHERWISE DISPOSED OF DIRECTLY OR INDIRECTLY, NOR USED FOR ANY OTHER PURPOSE OTHER THAN WHICH IT IS FURNISHED. NONE Apr 2011 240K-C2- SELECT C2-3610-PP-008/009 TO FLOOR MISMATCH MISMATCH MISMATCH MISMATCH MISMATCH MISMATCH MISMATCH MISMATCH MISMATCH MISMATCH MISMATCH 3510 01401 HY RSP 3510-PG-1023-C1A-6"-N 3510-WR-1915-C1A-4"-N 3510-SL-1476-R1A-12"-N 3510-SL-1481-R1A-3"-N 3510-SL-1480-R1A-3"-N T3 T3 C2-3510-PP-612 C2-3510-PP-611 SIZE: MATERIAL: MOTOR: C2-3510-PP-611 MO INTERMEDIATE THICKENER UNDERFLOW PUMP NO.1 SIZE: MATERIAL: MOTOR: C2-3510-PP-612 MO INTERMEDIATE THICKENER UNDERFLOW PUMP NO.2 AFD AFD
  • 185.
    D 4 F B A 3 2 1 5 68 E 7 C REV. APPROVED CHK. DES. REV. DATE REVISION DESCRIPTION CLIENT LEAD ENGINEER SCALE DRAWING NUMBER CHECK DESIGN CHECK DRAWING DESIGNED BY DRAWN BY APPROVAL DATE APPROVAL DATE APPROVED CHK. DES. REV. DATE REVISION DESCRIPTION REFERENCE DRAWING No. 1:100 0 1:200 5m 10m 0 5m 10m 15m 20m 1:500 10m 0 20m 30m 40m 50m 1:1000 0 100m 50m 1:20 0 0.5m 1m 1.5m 2m 0 1:25 0.5m 1m 1.5m 1:33 1/3 2.5m 2m 0 1m 2m 3m 0 1:50 1m 2m 3m 4m 5m CAD FILE NAME: P:0CAD000SPEM** MODEL UPDATED: DWG. FILE UPDATED: MANUAL CHANGES MADE: YES NO YES NO YES NO PROJECT MANAGER ENGINEERING MANAGER AREA PROJECTENGINEER REFERENCE DRAWINGS SAFETY SHARE: APPROVAL DATE CONTRACT NO. SAFETY SHARE : BA6CVA1.IGR NOTICE: THIS DRAWING HAS NOT BEEN PUBLISHED AND IS THE SOLE PROPERTY OF FLUOR AND IS LENT TO THE BORROWER FOR THEIR CONFIDENTIAL USE ONLY, AND IN CONSIDERATION OF THE LOAN OF THIS DRAWING, THE BORROWER PROMISES AND AGREES TO RETURN IT UPON REQUEST AND AGREES THAT IT WILL NOT BE REPRODUCED, COPIED LENT OR OTHERWISE DISPOSED OF DIRECTLY OR INDIRECTLY, NOR USED FOR ANY OTHER PURPOSE OTHER THAN WHICH IT IS FURNISHED. NONE Apr 2011 240K-C2- VENDOR VENDOR 3510 01582 HS 3510 01503 AIT 3510 01583 II 3510 01503 AE 3510 01501 LE 3510 01502 LE 3510 01581 HS 3510 01502 LIT 3510 01501 LIT 3510 01583 XA 3510 01583 HS 3510 01502 LI 3510 01582 XA FAULT 3510 01582 II 3510 01503 AI 3510 01581 XA FAULT 3510 01581 II 3510 01501 LIC 3510 01585 XA FAULT 3510 01585 II 3510 01585 HS 3510 01513 AIT 3510 01513 AI 3510 01513 AE 3510 01584 XA FAULT 3510 01511 LE 3510 01584 II 3510 01512 LE 3510 01584 HS 3510 01512 LIT 3510 01511 LIT 3510 01511 LIC 3510 01512 LI 3510 01586 HS 3510 01586 XA 3510 01586 II MIN. MIN. MO 2ND CLEANER TAILING MO 2ND CLEANER FLOTATION CELLS, C2-3510-CF-735 2510 3500-25J-016 MO 2ND CLEANER TAILING MO 2ND CLEANER FLOTATION CELLS, C2-3510-CF-735 2509 3500-25J-016 J/SP J/SP H, P2 L, P2 VENDOR VENDOR VENDOR J/SP J/SP ORP VENDOR H, P2 L, P2 VENDOR VENDOR ORP FAULT J/SP FAULT J/SP C2-3510-LA-617 C2-3510-CF-732 12" 12" 2"x1" 2"x1" 3510 01501 A LV + 3510 01501 B LV + C2-3510-CF-731 2"x1-1/2" 2"x1/2" C2-3510-CF-733 12" 12" 3510 01511 A LV + 3510 01511 B LV + 2"x1" C2-3510-CF-734 2"x1" SPENT PROCESS GAS EQUALIZATION HEADER 2505 3500-25J-016 SIZE: MOTOR: C2-3510-CF-731 MO 2ND CLEANER FLOTATION CELL NO.1 SIZE: MOTOR: C2-3510-CF-732 MO 2ND CLEANER FLOTATION CELL NO.2 SIZE: MOTOR: C2-3510-CF-733 MO 2ND CLEANER FLOTATION CELL NO.3 SIZE: MOTOR: C2-3510-CF-734 MO 2ND CLEANER FLOTATION CELL NO.4 SIZE: C2-3510-LA-617 MO 2ND CLEANER FLOTATION LAUNDER MO 2ND CLEANER CONC. MO 2ND CLEANER FLOTATION LAUNDER, C2-3510-LA-617 2507 3500-25J-016 T1 T1 T1 T1 3510-WR-1804-C1A-4"-N 3510-PG-1025-C1A-10"-N T1 MO 1ST CLEANER CONC. 2ND CLEANER FLOTATION FEED PUMPS, 2512 3500-25J-016 3510-SL-1494-R1A-4"-N SLOPE T1 3510-PG-1026-C1A-6"-N 3510-PG-1027-C1A-6"-N 3510 01504 FE + 3510 01504 FIT 3510 01504 FIC 1-1/2"x1" 1-1/2"x1" 3510 01514 FE + 3510 01514 FIT 3510 01514 FIC 1-1/2"x1" 1-1/2"x1" 3510-N2G-1012-C1D-1-1/2"-N 3510-N2G-1011-C1D-1-1/2"-N NITROGEN NITROGEN VAPORIZER, C2-3510-ZM-528 2843 3500-25J-041 NITROGEN NITROGEN VAPORIZER, C2-3510-ZM-528 2844 3500-25J-041 ES ES AG KM LT ISSUED FOR CLIENT REVIEW 22-Dec-11 B RP ISSUED FOR COMBINED REVIEW 30-Jun-11 A 12/22/2011 K. MUNDY A. GUNSON A. REGNAULT L. TAMELIN 12/22/2011 11:58:20 AM WBS: 3510 B PIPING AND INSTRUMENTATION DIAGRAM MOLY PLANT 3500-25J-015 MO SECOND CLEANER CELLS 1 TO 4 3510 01514 FV + 3510 01504 FV + MO CLEANER SCAV. TAIL. MO CLEANER SCAV. TAILING PUMP, C2-3510-PP-615/616 2527 3500-25J-013 V V V V FC FC C2-3510-PP-622/623 3510-SL-1473-R1A-6"-N 3510-WR-1852-C1A-2"-N 3510-WR-1853-C1A-2"-N 3510-WR-1854-C1A-2"-N 3510-WR-1855-C1A-2"-N 3510-WR-1856-C1A-2"-N 3510-WR-1857-C1A-2"-N 3510-SL-1521-R1A-6"-N 3510-SL-1483-R1A-4"-N 3510-SL-1484-R1A-4"-N 3510-SL-1485-R1A-4"-N 3510-SL-1486-R1A-4"-N 3510-SL-1520-R1A-6"-N PROCESS WATER 3350 3900-25J-016 CONC. CLARIFIER O/F CLARIFIER O/F TRANSFER PUMPS, C2-3610-PP-008/009 4142 3600-25J-004 3610-WR- -C1A-4"-N
  • 186.
    T1 T3 BY VENDOR T3 T3 T3 T1 T1 T1 R1A 3510 01609 XA 3510 01619 XA 3510 01619 ZS 3510 01609 ZS OP/CL 3510 01611 FIT 3510 01611 FIC 3510 01637 ZS 3510 01639 XA 3510 01639 ZS 3510 01629 XA 3510 01618 ZS OP/CL 3510 01629 ZS OP/CL 3510 01628 XA 3510 01628 ZS 3510 01627 XA 3510 01637 XA 3510 01627 ZS 3510 01638 XA 3510 01638 ZS OP/CL 3510 01618 XA 3510 01682 HS J/SP 3510 01620 FI MASS FLOW 3510 01610 LIC 3510 01315 PI L,P2 3510 01614 FI 3510 01620 DIT 3510 01685 HS J/SP 3510 01610 LE 3510 01601 LIC 3510 01605 PI 3510 01681 HS J/SP 3510 01686 HS J/SP 3510 01607 XA 3510 01604 FI 3510 01608 ZS OP/CL 3510 01620 FI 3510 01620 FIT 3510 01620 FY 3510 01601 LIT 3510 01681 II 3510 01612 PI 3510 01685 XA 3510 01620 DX 3510 01610 LT 3510 01686 II 3510 01632 PI 3510 01610 A LI 3510 01630 LIC 3510 01681 XA 3510 01635 PIT 3510 01603 AI 3510 01602 LIT 3510 01602 LI 3510 01613 PI 3510 01685 II 3510 01635 PI L, P2 3510 01634 FIT 3510 01634 FI 3510 01625 PIT 3510 01683 HS J/SP 3510 01684 XA 3510 01684 HS J/SP 3510 01620 DI 3510 01620 DE 3510 01625 PI 3510 01624 FIT 3510 01624 FI 3510 01640 FIT 3510 01640 FI 3510 01640 DX 3510 01695 XA 3510 01633 PI 3510 01695 II 3510 01640 DE 3510 01640 DI 3510 01640 DIT 3510 01617 ZS 3510 01686 XA 3510 01640 FI 3510 01695 HS J/SP 3510 01607 ZS OP/CL 3510 01684 II 3510 01640 FQI 3510 01630 LE 3510 01608 XA 3510 01696 HS J/SP 3510 01640 FY 3510 01630 LT 3510 01630 A LI 3510 01615 PIT OP/CL 3510 01601 LE MIN. M 3510 01602 LE M 3510 01614 FIT M 3510 01603 AIT M 3510 01617 XA 3510 01605 PIT M 3510 01604 FIT 3510 01696 II M 3510 01603 AE 3510 01696 XA 3510 01682 XA 3510 01683 XA 3510 01682 II 3510 01683 II MIN MO 1ST CLEANER CONC. MO 1ST CLEANER FLOTATION LAUNDER, C2-3510-LA-615 2499 3500-25J-011 MO 2ND CLEANER TAILING MO 1ST CLEANER CONDITIONING TANK, 2485 3500-25J-007 SPENT PROCESS GAS EQUALIZATION HEADER 2505 3500-25J-015 MO 2ND CLEANER TAIL. MO 2ND CLEANER FLOTATION CELL, C2-3510-CF-734 2509 3500-25J-015 MO 2ND CLEANER TAIL. MO 2ND CLEANER FLOTATION CELL, C2-3510-CF-734 2510 3500-25J-015 MO 1ST CLEANER CONC. MO 2ND CLEANER FLOTATION, C2-3510-CF-731 2512 3500-25J-015 MO 2ND CLEANER CONC. MO 2ND CLEANER FLOTATION LAUNDER, C2-3510-LA-617, 2507 3500-25J-015 PROCESS WATER 2508 3900-25J-016 NITROGEN NITROGEN VAPORIZER, C2-3510-ZM-528 2834 3500-25J-041 MO 2ND CLEANER CONC. MO CLEANER SCAV. CONC. PUMPBOX, C2-3510-BX-606 2526 3500-25J-013 OP/CL OP/CL OP/CL OP/CL OP/CL VENDOR L, P2 LL, P1 MIN L, P2 LL, P1 FROTHER PADDLE MOTOR MIN L, P2 TO FLOOR MIN LL, P1 L, P2 H, P2 MIN. BY VENDOR ORP MIN BY VENDOR L, P2 LL, P1 BY VENDOR L, P2 LL, P1 BY VENDOR L, P2 BY VENDOR LL, P1 L, P2 H, P2 BY VENDOR BY VENDOR MIN MASS FLOW MASS FLOW AFD FAULT AFD FAULT FAULT AFD (LAUNDER) FAULT MIN. SPLIT RANGE TO FLOOR MIN TO FLOOR MIN AFD MIN FAULT VENDOR FAULT H, P2 L, P2 MIN (LAUNDER) C2-3510-TK-603 FAULT FAULT 3510 01611 FV + 1" BA- N2 N1 N4 C2-3510-CF-735 3510-WR-1860-C1A-1"-N 3510 01637 XV + FI 1/2" BA- FI 3510-SL-1494-R1A-4"-N 1-1/2" PL- 1-1/2" PL- 1-1/2" PL- C2-3510-CF-736 ES 3510 01634 FE + 3510-WR-1861-C1A-1"-N 3510 01601 B LV + 3" 1-1/2" BA- C2-3510-BX-609 3510-PG-1029-C1A-6"-N SIZE: MATERIAL: MOTOR: C2-3510-PP-624 MO 2ND CLEANER TAILING PUMP NO. 1 3510 01639 XV + SIZE: MOTOR: C2-3510-CF-737 MO 2ND CLEANER FLOTATION CELL NO.7 N5 3510 01601 A LV + BA- 3510-WG-1043-C1A-4"-N N4 SIZE: MATERIAL: MOTOR: C2-3510-PP-623 MO 2ND CLEANER CONCENTRATE FEED PUMP NO. 2 SIZE: MATERIAL: CAPACITY: TRIM: C2-3510-BX-609 MO 2ND CLEANER FEED PUMPBOX AG KM LT ISSUED FOR CLIENT REVIEW 22-Dec-11 B RP ISSUED FOR COMBINED REVIEW 30-Jun-11 A 12/22/2011 K. MUNDY A. GUNSON A. REGNAULT L. TAMELIN 12/22/2011 2:24:49 PM WBS: 3510 B PIPING AND INSTRUMENTATION DIAGRAM MOLY PLANT 3500-25J-016 MO SECOND CLEANER CELLS 5 TO 7 C2-3510-PP-623 3510 01604 FE + N1 3" KG- 3510 01627 XV + 3510 01629 XV + N6 C2-3510-BX-615 SIZE: MATERIAL: CAPACITY: TRIM: C2-3510-BX-615 MO 2ND CLEANER TAILING PUMPBOX BA- 3510-SL-1507-R1A-6"-N 3510-WR-1307-C1A-2"-N V N12 V 3510 01628 XV + C2-3510-PP-624 3510-PG-1025-C1A-10"-N N5 3510 01619 XV + FI 3510 01624 FE + 3" KG- 3510-PG-1030-C1A-4"-N FI 1-1/2" PL- 3510 01608 XV + ES 3510 01614 FE + 3" KG- SIZE: MOTOR: C2-3510-CF-735 MO 2ND CLEANER FLOTATION CELL NO.5 3" ES 1/2" BA- ES 3510-WR-1859-C1A-1"-N 3510-SL-1504-R1A-8"-N 3510 01617 XV + 3510 01640 FE + SIZE: MATERIAL: MOTOR: C2-3510-PP-625 MO 2ND CLEANER TAILING PUMP NO. 2 3510 01609 XV + N2 C2-3510-PP-625 1-1/2" PL- FI ES C2-3510-PP-622 SIZE: MATERIAL: MOTOR: C2-3510-PP-622 MO 2ND CLEANER FEED PUMP NO. 1 1-1/2" PL- 3510-WF-1084-C1A-1-1/2"-N N9 3510 01618 XV + C2-3510-CF-737 V1 ES FI 1-1/2" PL- N9 1" BA- 3510 01638 XV + 3510-SL-1506-R1A-6"-N BA- 1" BA- 3510-SL-1493-R1A-6"-N 1-1/2" PL- 1-1/2" PL- 3510-RS-1064-S1B-1"-N ES 3510 01607 XV + 1-1/2" PL- 3510-SL-1492-R1A-6"-N ES FI 3510 01620 FE + SIZE: MOTOR: C2-3510-CF-736 MO 2ND CLEANER FLOTATION CELL NO.6 3510-SL-1495-R1A-4"-N 3510-N2G-1013-C1D-1-1/2"-N 3510 01611 FE + ES D 4 F B A 3 2 1 5 6 8 E 7 C REV. APPROVED CHK. DES. REV. DATE REVISION DESCRIPTION CLIENT LEAD ENGINEER SCALE DRAWING NUMBER CHECK DESIGN CHECK DRAWING DESIGNED BY DRAWN BY APPROVAL DATE APPROVAL DATE APPROVED CHK. DES. REV. DATE REVISION DESCRIPTION REFERENCE DRAWING No. 1:100 0 1:200 5m 10m 0 5m 10m 15m 20m 1:500 10m 0 20m 30m 40m 50m 1:1000 0 100m 50m 1:20 0 0.5m 1m 1.5m 2m 0 1:25 0.5m 1m 1.5m 1:33 1/3 2.5m 2m 0 1m 2m 3m 0 1:50 1m 2m 3m 4m 5m CAD FILE NAME: P:0CAD000SPEM** MODEL UPDATED: DWG. FILE UPDATED: MANUAL CHANGES MADE: YES NO YES NO YES NO PROJECT MANAGER ENGINEERING MANAGER AREA PROJECTENGINEER REFERENCE DRAWINGS SAFETY SHARE: APPROVAL DATE CONTRACT NO. SAFETY SHARE : BA6CVA1.IGR NOTICE: THIS DRAWING HAS NOT BEEN PUBLISHED AND IS THE SOLE PROPERTY OF FLUOR AND IS LENT TO THE BORROWER FOR THEIR CONFIDENTIAL USE ONLY, AND IN CONSIDERATION OF THE LOAN OF THIS DRAWING, THE BORROWER PROMISES AND AGREES TO RETURN IT UPON REQUEST AND AGREES THAT IT WILL NOT BE REPRODUCED, COPIED LENT OR OTHERWISE DISPOSED OF DIRECTLY OR INDIRECTLY, NOR USED FOR ANY OTHER PURPOSE OTHER THAN WHICH IT IS FURNISHED. NONE Apr 2011 240K-C2- GLAND SEAL WATER 2528 3900-25J-016 FI FI FI 3510-SL-1505-R1A-8"-N FI FI NAHS SOLUTION NAHS INJECTOR NO.10, C2-3510-ZM-636 3575 3500-25J-037 CONTINUE V V NAHS SOLUTION NAHS INJECTOR NO.11, C2-3510-ZM-637 3578 3500-25J-037 3510 01620 FQI MASS FLOW 3510 01623 AE 3510 01623 AIT 3510 01623 AI H,P2 H2S ES 3510-WR-1936-C1A-2"-N 3510-WR-1858-C1A-2"-N 3510-RS-1064-S1B-1"-N 3510-WR- -C1A-2"-N 3510-WG-1085-C1A-1"-N 3510-WG-1086-C1A-1-1/2"-N 3510-SL-1531-R1A-3"-N 3510-SL-1498-R1A-6"-N 3510-SL-1497-R1A-6"-N 3510-SL-1496-R1A-6"-N 3510-SL-1499-R1A-8"-N 3510-SL-1450-R1A-8"-N 3510-WG-1087-C1A-1"-N C2-3510-LA-617 SIZE: C2-3510-LA-617 MO 2ND CLEANER FLOTATION LAUNDER 3510-RS-1063-S1B-1"-N
  • 187.
    T3 AFD T3 MIN 3510 01782 HS J/SP 3510 01710 LE 3510 01705 PIT 3510 01711 LE 3510 01711 LIC 3510 01781 XA NOTE 2 3510 01710 A LI 3510 01702 FITH, P2 L, P2 3510 01710 LIC 3510 01720 PIT 3510 01715 PI 3510 01715 PIT 3510 01781 II 3510 01728 AIT 3510 01711 LIT 3510 01704 FI L, P2 LL, P1 3510 01728 AI 3510 01728 AE H2S 3510 01705 PI L, P2 3510 01702 FIC OP/CL 3510 01725 FIC 3510 01714 FIT M M MIN 3510 01713 PI 3510 01781 HS J/SP 3510 01723 PI 3510 01710 LT 3510 01712 PI 3510 01725 FIT 3510 01704 FIT 3510 01714 FI M 3510 01782 II 3510 01720 PI 3510 01722 PI 3510 01782 XA 3510 01709 XA 3510 01719 XA 3510 01709 ZS OP/CL 3510 01719 ZS OP/CL 3510 01725 ZS 3510 01725 XA OP/CL 3510 01724 XA 3510 01724 ZS 3510 01726 XA 3510 17183 XA FAULT 3510 17183 II 3510 17183 HS 3510 01726 ZS 3510 01707 ZS 3510 01707 XA OP/CL 3510 01717 ZS OP/CL 3510 01717 XA 3510 01718 XA 3510 01718 ZS OP/CL 3510 01727 XA 3510 01727 ZS 3510 01708 ZS OP/CL 3510 01708 XA BY VENDOR MO 3RD CLEANER CONC. 4TH CLEANER FEED PUMPBOX, C2-3510-BX-611 2229 3500-25J-021 SPENT PROCESS GAS EQUALIZATION HEADER 2228 3500-25J-021 NAHS SOLUTION NAHS INJECTOR NO. 3, C2-3540-ZM-665 2225 3500-25J-037 MO 4TH CLEANER TAILING 4TH CLEANER COLUMN CELL, C2-3510-CM-602 2226 3500-25J-021 NASIO3 SOLUTION NASIO3 INJECTOR, C2-3510-ZM-645 2227 3500-25J-032 PLANT AIR 2235 3900-25J-021 MO INTERMEDIATE MO INTERMEDIATE THICKENER U/F PUMPS, 2224 3500-25J-014 MO 3RD CLEANER TAILING MO CLEANER SCAVENGER FLOTATION CELL, 2230 3500-25J-012 MIN BY VENDOR O/F MIN BY VENDOR NOTE 2 MIN (TYPE FOR ALL) MIN MIN FAULT H, P2 L, P2 MIN TO DRAIN 24'' MAN WAY TO DRAIN H, P2 L, P2 LL, P2 L, P2 LL, P1 H, P2 J/SP OP/CL FAULT NOTES: 1. THREE NOZZLES 2. MAINTAIN MINIMUM DISTANCE BETWEEN VALVE AND FITTINGS OR FLANGES. NOTE 1 TO FLOOR BY VENDOR L, P2 MIN AFD 1" 3" 1" 2"x1" 1" V 1" 1" FI FI 3510 01718 XV + V FI V V 3510 01707 XV + 1-1/2" 3510 01708 XV + FI V 1-1/2" 2"x1" V C2-3510-CM-601 1" 3510 01726 XV + V 3510 01702 FE + FI C2-3510-PP-626 3510 01704 FE + FI C2-3510-BX-610 1-1/2" SIZE: MATERIAL: CAPACITY: TRIM: C2-3510-BX-610 MO 3RD CLEANER FEED PUMPBOX 1" 3510 01725 XV + FI 1"x1/2" 4"x2-1/2" 1-1/2" FI 1" C2-3510-TK-615 V C2-3510-PP-627 3510 01711 LV + V 3510 01724 XV + 3510 01702 FV + V V V 2"x1" 1" C2-3510-AG-615 3510 01717 XV + 1/2" V SIZE: C2-3510-CM-601 MO 3RD CLEANER COLUMN CELL 6" FI FC V 1" 3510 01719 XV + 1-1/2" FI 1" 3510 01709 XV + 1" 3510 01727 XV + 2"x1" 8"x6" 3510 01725 FV + V 1" V 3510 01714 FE + 3510 01725 FE + 1"x1/2" V V V V 3510-SL-1515-R1A-12"-N 3510-WF-1426-C1A-6"-N SIZE: MATERIAL: CAPACITY: TRIM: C2-3510-TK-615 MO INTERMEDIATE THICKENER U/F ATTRITOR TANK V V ES V 3510-AP-1262-C1A-1"-N 3510-SL-1527-R1A-8"-N SIZE: MATERIAL: MOTOR: C2-3510-AG-615 MO 2ND CLEANER THICKENER U/F ATTRITOR TANK AGITATOR 3510-PG-1031-C1A-10"-N 3510-WR-1863-C1A-2-1/2"-N 3510-WG-1044-C1A-1-1/2"-N SIZE: MATERIAL: MOTOR: C2-3510-PP-627 MO 3RD CLEANER FEED PUMP NO. 2 V 3510-RS-1016-C1D-2"-N V 3510-RS-1065-S1B-1"-N 3510-WG-1088-C1A-1"-N 3510-SL- -R1A-8"-N ES 3510-SL-1518-R1A-10"-N V 3510-SL-1514-R1A-12"-N ES 3510-SL-1517-R1A-8"-N 3510-SL-1481-R1A-3"-N SIZE: MATERIAL: MOTOR: C2-3510-PP-626 MO 3RD CLEANER FEED PUMP NO. 1 V 3510-PG-1034-C1A-6"-N 3510-SL-1512-R1A-14"-N 3510-SL-1513-R1A-14"-N 3510-WR-1310-C1A-4"-N 3510-SL-1508-R1A-4"-N ES V V 3510-WR-1862-C1A-4"-N AG KM LT ISSUED FOR CLIENT REVIEW 22-Dec-11 B RP ISSUED FOR COMBINED REVIEW 30-Jun-11 A 12/22/2011 K. MUNDY A. GUNSON A. REGNAULT L. TAMELIN 12/22/2011 12:04:02 PM WBS: 3510 B PIPING AND INSTRUMENTATION DIAGRAM MOLY PLANT 3500-25J-017 THIRD CLEANER COLUMN FLOTATION 3510-PG-1032-C1A-4"-N 3510-PG-1033-C1A-4"-N D 4 F B A 3 2 1 5 6 8 E 7 C REV. APPROVED CHK. DES. REV. DATE REVISION DESCRIPTION CLIENT LEAD ENGINEER SCALE DRAWING NUMBER CHECK DESIGN CHECK DRAWING DESIGNED BY DRAWN BY APPROVAL DATE APPROVAL DATE APPROVED CHK. DES. REV. DATE REVISION DESCRIPTION REFERENCE DRAWING No. 1:100 0 1:200 5m 10m 0 5m 10m 15m 20m 1:500 10m 0 20m 30m 40m 50m 1:1000 0 100m 50m 1:20 0 0.5m 1m 1.5m 2m 0 1:25 0.5m 1m 1.5m 1:33 1/3 2.5m 2m 0 1m 2m 3m 0 1:50 1m 2m 3m 4m 5m CAD FILE NAME: P:0CAD000SPEM** MODEL UPDATED: DWG. FILE UPDATED: MANUAL CHANGES MADE: YES NO YES NO YES NO PROJECT MANAGER ENGINEERING MANAGER AREA PROJECTENGINEER REFERENCE DRAWINGS SAFETY SHARE: APPROVAL DATE CONTRACT NO. SAFETY SHARE : BA6CVA1.IGR NOTICE: THIS DRAWING HAS NOT BEEN PUBLISHED AND IS THE SOLE PROPERTY OF FLUOR AND IS LENT TO THE BORROWER FOR THEIR CONFIDENTIAL USE ONLY, AND IN CONSIDERATION OF THE LOAN OF THIS DRAWING, THE BORROWER PROMISES AND AGREES TO RETURN IT UPON REQUEST AND AGREES THAT IT WILL NOT BE REPRODUCED, COPIED LENT OR OTHERWISE DISPOSED OF DIRECTLY OR INDIRECTLY, NOR USED FOR ANY OTHER PURPOSE OTHER THAN WHICH IT IS FURNISHED. NONE Apr 2011 240K-C2- OP/CL C2-3510-PP-611/612 3510-WR-1312-C1A-2"-N 3510-WR-1308-C1A-2"-N MISMATCH V V C2-3510-CF-721 MISMATCH MISMATCH MISMATCH V V V V V V 3510-WR-1084-C1A-4"-N 3510-WR-1310-C1A-4"-N V FC ES ? MISMATCH MISMATCH MISMATCH MISMATCH 3510 01733 AIT 3510 01733 AI 3510 01733 AE H, P2 ES H2S THICKENER U/F PUMPS MISMATCH 3510-WR-1865-C1A-2-1/2"-N 3510-WR-1864-C1A-2-1/2"-N 3510-SL-1516-R1A-3"-N 3510 PCV + GLAND SEAL WATER 2972 3900-25J-023 PROCESS WATER 2233 3900-25J-016 FRESH WATER 4239 5100-25J-015
  • 188.
    T8 T3 T3 AFD MIN 3510 02183 II 3510 02128 LIT 3510 02183 HS J/SP 3510 02128 LE 3510 02128 LI 3510 02183 XA FAULT 3510 02118 ZS OP/CL 3510 02181 HS J/SP 3510 02109 ZS OP/CL 3510 02118 XA 3510 02113 PI MISMATCH NOTE 2 3510 02102 FITH, P2 L, P2 3510 02119 XA MISMATCH 3510 02117 XA OP/CL 3510 02109 XA 3510 02181 II 3510 02102 FIC MIN 3510 02182 XA 3510 02115 PIT 3510 02182 II M 3510 02122 PI 3510 02182 HS J/SP 3510 02114 FI 3510 02126 XA 3510 02181 XA 3510 02120 PI 3510 02115 PI 3510 02111 LIC 3510 02120 PIT 3510 02104 FIT 3510 02124 ZS 3510 02103 FIT 3510 02124 XA 3510 02105 PI L, P2 3510 02111 LE 3510 02105 PIT 3510 02108 XA 3510 02110 A LI 3510 02112 PI 3510 02117 ZS OP/CL 3510 02110 LIC 3510 02110 LE M 3510 02125 XA 3510 02110 LT M 3510 02108 ZS OP/CL 3510 02107 XA MISMATCH 3510 02125 ZS OP/CL 3510 02114 FIT 3510 02127 ZS OP/CL 3510 02103 FIC 3510 02127 XA 3510 02107 ZS 3510 02126 ZS OP/CL 3510 02104 FI L, P2 LL, P1 3510 02123 PI 3510 02119 ZS OP/CL 3510 02111 LIT R1A BY VENDOR MISMATCH PLANT AIR 2602 3900-25J-021 SPENT PROCESS GAS EQUALIZATION HEADER 2603 3500-25J-022 MO 4TH CLEANER CONC. 5TH CLEANER FEED PUMPBOX, C2-3510-BX-612 2606 3500-25J-022 MO 5TH CLEANER TAIL. 5TH CLEANER COLUMN CELL, C2-3510-CM-603 2608 3500-25J-022 MO COLUMN SUMP CONT. MO INTERMEDIATE THICKENER FEED BOX, 2543 3500-25J-014 SPENT PROCESS GAS EQUALIZATION HEADER 2228 3500-25J-017 MO 4TH CLEANER TAILING 3RD CLEANER FEED PUMPBOX, C2-3510-BX-610 2229 3500-25J-017 MO 3RD CLEANER TAIL. 3TH CLEANER COLUMN CELL, C2-3510-CM-601 2226 3500-25J-017 NAHS SOLUTION NAHS INJECTOR NO. 12, C2-3510-ZM-638 3564 3500-25J-037 MIN 24'' MAN WAY AFD MIN TO DRAIN MIN L, P2 BY VENDOR TO FLOOR H, P2 L, P2 NOTE 1 FAULT C2-3510-BX-616 H, P2 L, P2 LL, P1 MISMATCH MISMATCH NOTES: 1. THREE NOZZLES 2. MAINTAIN MINIMUM DISTANCE BETWEEN VALVE AND FITTINGS OR FLANGES. MIN MIN FAULT MIN (TYPE FOR ALL) NOTE 2 BY VENDOR L, P2 LL, P1 MIN OP/CL H, P2 L, P2 LL, P2 TO DRAIN O/F BY VENDOR 3510-WR-1313-C1A-2"-N V V V V V V V V V 3510-WR-1315-C1A-4"-N 3510-RS-1066-S1B-1"-N 3510-WR-1804-C1A-2"-N 3510 02117 XV + ES V 3510-SL-1525-R1A-10"-N SIZE: MATERIAL: MOTOR: C2-3510-PP-629 MO 4TH CLEANER FEED PUMPS NO. 2 V 3510-WG-1045-C1A-1-1/2"-N 3510-PG-1031-C1A-10"-N 1" V V 3510 02108 XV + V 1/2" 3510 02111 LV + 1-1/2" V V 1" V V 3510 02118 XV + 3510 02102 FE + V 3510 02103 FE + V 1"x1/2" 3510 02103 FV + 3510-WR-1867-C1A-2-1/2"-N 1" V 3510 02127 XV + 8"x6" FI 1-1/2" 3" V 3510 02107 XV + V C2-3510-PP-621 AG KM LT ISSUED FOR CLIENT REVIEW 22-Dec-11 B RP ISSUED FOR COMBINED REVIEW 30-Jun-11 A 12/22/2011 K. MUNDY A. GUNSON A. REGNAULT L. TAMELIN 12/22/2011 1:35:54 PM WBS: 3510 B PIPING AND INSTRUMENTATION DIAGRAM MOLY PLANT 3500-25J-021 FOURTH CLEANER COLUMN FLOTATION SIZE: MATERIAL: MOTOR: C2-3510-PP-621 MO FLOTATION COLUMN SUMP PUMP FI 3510 02109 XV + V V 2"x1" FI FI 1-1/2" 3510 02125 XV + FI V 1" 1" C2-3510-CM-602 3510-AP-1238-C1A-1"-N V 3510-WR-1866-C1A-4"-N FI 3510 02124 XV + 3" 3510-SL-1537-R1A-14"-N 3510 02119 XV + V 3510 02126 XV + 1" 1" 1" 1" 3510-PG-1036-C1A-6"-N V 2"x1" V SIZE: MATERIAL: MOTOR: C2-3510-PP-628 MO 4TH CLEANER FEED PUMPS NO. 1 1" V 3510-SL-1527-R1A-8"-N 1-1/2" 1" FC ES 3510 02102 FV + 3510-SL-1524-R1A-10"-N V C2-3510-PP-629 V 3510-SL-1522-R1A-12"-N 2"x1" V 6" 3510 02114 FE + FI 1-1/2" 3510 02104 FE + SIZE: C2-3510-CM-602 MO 4TH CLEANER COLUMN CELL 3510-WG-1089-C1A-1"-N FI C2-3510-PP-628 ES 4"x2-1/2" 1"x1/2" 3510-WR-1315-C1A-4"-N FI 3510-SL-1523-R1A-12"-N V V SIZE: MATERIAL: CAPACITY: TRIM: C2-3510-BX-611 MO 4TH CLEANER FEED PUMPBOX 1" V C2-3510-BX-611 3510-SL-1528-R1A-10"-N 1" ES 2"x1" 3510-AP-1238-C1A-1"-N 3510-SL-1527-R1A-8"-N FI V 3510-PG-1031-C1A-10"-N 3510-WF-1427-C1A-1"-N 3510-PG-1035-C1A-4"-N D 4 F B A 3 2 1 5 6 8 E 7 C REV. APPROVED CHK. DES. REV. DATE REVISION DESCRIPTION CLIENT LEAD ENGINEER SCALE DRAWING NUMBER CHECK DESIGN CHECK DRAWING DESIGNED BY DRAWN BY APPROVAL DATE APPROVAL DATE APPROVED CHK. DES. REV. DATE REVISION DESCRIPTION REFERENCE DRAWING No. 1:100 0 1:200 5m 10m 0 5m 10m 15m 20m 1:500 10m 0 20m 30m 40m 50m 1:1000 0 100m 50m 1:20 0 0.5m 1m 1.5m 2m 0 1:25 0.5m 1m 1.5m 1:33 1/3 2.5m 2m 0 1m 2m 3m 0 1:50 1m 2m 3m 4m 5m CAD FILE NAME: P:0CAD000SPEM** MODEL UPDATED: DWG. FILE UPDATED: MANUAL CHANGES MADE: YES NO YES NO YES NO PROJECT MANAGER ENGINEERING MANAGER AREA PROJECTENGINEER REFERENCE DRAWINGS SAFETY SHARE: APPROVAL DATE CONTRACT NO. SAFETY SHARE : BA6CVA1.IGR NOTICE: THIS DRAWING HAS NOT BEEN PUBLISHED AND IS THE SOLE PROPERTY OF FLUOR AND IS LENT TO THE BORROWER FOR THEIR CONFIDENTIAL USE ONLY, AND IN CONSIDERATION OF THE LOAN OF THIS DRAWING, THE BORROWER PROMISES AND AGREES TO RETURN IT UPON REQUEST AND AGREES THAT IT WILL NOT BE REPRODUCED, COPIED LENT OR OTHERWISE DISPOSED OF DIRECTLY OR INDIRECTLY, NOR USED FOR ANY OTHER PURPOSE OTHER THAN WHICH IT IS FURNISHED. NONE Apr 2011 240K-C2- 3510-WR-1869-C1A-2-1/2"-N 3510-WR-1868-C1A-2-1/2"-N 3510-SL-1526-R1A-3"-N 3510-SL-1576-C1B-4"-N 3510-SL-1518-R1A-10"-N 3510-WR-1804-C1A-4"-N 3510 PCV + GLAND SEAL WATER 4233 3900-25J-016 PROCESS WATER 4234 3900-25J-016 FRESH WATER 4235 5100-25J-015
  • 189.
    T3 AFD T3 MIN 3510 02205 PI L, P2 3510 02282 XA 3510 02209 XA 3510 02210 LE 3510 02219 XA 3510 02218 XA 3510 02205 PIT 3510 02211 LE 3510 02224 XA 3510 02224 ZS 3510 02281 XA 3510 02226 XA MMISMATCH 3510 02211 LIT 3510 02204 FIL, P2 LL, P1 MIN 3510 02225 XA 3510 02202 FIT H, P2 L, P2 3510 02225 ZS 3510 02208 ZS OP/CL 3510 02210 LI 3510 02213 PI 3510 02281 HS J/SP OP/CL 3510 02227 ZS OP/CL 3510 02212 PI 3510 02202 FIC M 3510 02219 ZS OP/CL 3510 02227 XA MMISMATCH 3510 02223 PI 3510 02282 II 3510 02203 FIT 3510 02204 FIT MISMATCH 3510 02214 FI 3510 02211 LIC 3510 02226 ZS OP/CL 3510 02207 ZS OP/CL 3510 02207 XA MISMATCH 3510 02217 ZS OP/CL 3510 02208 XA 3510 02220 PIT 3510 02215 PI 3510 02215 PIT 3510 02281 II NOTE 2 3510 02210 LT 3510 02203 FIC 3510 02209 ZS OP/CL 3510 02218 ZS OP/CL 3510 02214 FIT M M 3510 02220 PI 3510 02210 LIC 3510 02217 XA 3510 02222 PI 3510 02282 HS J/SP MISMATCH BY VENDOR R1A MISMATCH GLAND SEAL WATER 2613 PLANT AIR 2614 3900-25J-021 NASIO3 SOLUTION NASI03 INJECTOR, C2-3510-ZM-643 2615 3500-25J-032 SPENT PROCESS GAS EQUALIZATION HEADER 2610 3500-25J-024 SPENT PROCESS GAS EQUALIZATION HEADER 2603 3500-25J-021 MO 4TH CLEANER CONC. 4TH CLEANER COLUMN CELL, C2-3510-CM-602 2606 3500-25J-021 MO 5TH CLEANER TAILING 4TH CLEANER FEED PUMPBOX, C2-3510-BX-611 2608 3500-25J-021 MO FINAL CONCENTRATE MO FINAL CONCENTRATE SAMPLER, C2-3510-SA-614 2239 3500-25J-024 NAHS SOLUTION NAHS INJECTOR, C2-3510-ZM-639 3569 3500-25J-037 NOTES: 1. THREE NOZZLES 2. MAINTAIN MINIMUM DISTANCE BETWEEN VALVE AND FITTINGS OR FLANGES. MMISMATCH MMISMATCH MISMATCH MISMATCH MIN FAULT TO FLOOR MIN AFD H, P2 L, P2 LL, P2 TO DRAIN L, P2 BY VENDOR MIN MIN FAULT O/F BY VENDOR NOTE 2 24'' MAN WAY MIN (TYPE FOR ALL) MIN NOTE 1 L, P2 LL, P1 TO DRAIN OP/CL MIN H, P2 L, P2 BY VENDOR 3510-WR-1316-C1A-4"-N 3510-WR-1317-C1A-2"-N V V V V V V V V V V V V 3510-WR-1318-C1A-4"-N FI 3510-RC-1067-S1B-1"-N ES AG KM LT ISSUED FOR CLIENT REVIEW 22-Dec-11 B RP ISSUED FOR COMBINED REVIEW 30-Jun-11 A 12/22/2011 K. MUNDY A. GUNSON A. REGNAULT L. TAMELIN 12/22/2011 12:09:56 PM WBS: 3510 B PIPING AND INSTRUMENTATION DIAGRAM MOLY PLANT 3500-25J-022 FIFTH CLEANER COLUMN FLOTATION C2-3510-CM-603 2"x1" 1"x1/2" 1" 3510 02209 XV + 1-1/2" V 1" 1" FI FI 3510 02218 XV + 2"x1" FI 8"x6" 3510 02203 FV + V 3510 02207 XV + 3510-WR-1318-C1A-4"-N V 3510 02203 FE + C2-3510-PP-631 3510-PG-1031-C1A-10"-N V 3510 02202 FV + 2-1/2" V V V V V V 3510 02217 XV + 1" 3510 02226 XV + 3510-AP-1263-C1A-1"-N V FI V V V 1" V SIZE: C2-3510-CM-603 MO 5TH CLEANER COLUMN CELL V 3510-SL-1537-R1A-8"-N FI 2"x1" 3510-PG-1031-C1A-10"-N 1"x1/2" 3510-SL-1535-R1A-8"-N 3510-WR-1871-C1A-2-1/2"-N 3510-WR-1870-C1A-4"-N 1-1/2" 3510-SL-1538-R1A-6"-N 3510-WG-1046-C1A-2"-N C2-3510-BX-612 ES FC 3510 02227 XV + V 3510-SL-1537-R1A-8"-N SIZE: MATERIAL: MOTOR: C2-3510-PP-630 MO 5TH CLEANER FEED PUMP NO. 1 SIZE: MATERIAL: CAPACITY: TRIM: C2-3510-BX-612 MO 5TH CLEANER FEED PUMPBOX 3510 02202 FE + 3510 02204 FE + V 3510 02224 XV + 4"x2-1/2" 1" 3510-SL-1532-R1A-8"-N V 3" 1-1/2" V V 3510 02214 FE + 3510-RS-1014-C1D-2"-N 3510 02225 XV + 1" 1" V 2"x1" 3510-SL-1533-R1A-8"-N V FI V 1" 3" V 3510-WF-1425-C1A-1"-N 3510 02211 LV + ES 3510-AP-1263-C1A-1"-N 1/2" SIZE: MATERIAL: MOTOR: C2-3510-PP-631 MO 5TH CLEANER FEED PUMP NO. 2 1" V C2-3510-PP-630 1" 1" 3510-WG-1090-C1A-1"-N V FI V 3510-SL-1534-R1A-8"-N 2-1/2" ES 1-1/2" ES FI FI 3510-PG-1038-C1A-6"-N 1" 6" 3510 02219 XV + V 1-1/2" 3510-SL-1528-R1A-12"-N 3510-PG-1037-C1A-4"-N D 4 F B A 3 2 1 5 6 8 E 7 C REV. APPROVED CHK. DES. REV. DATE REVISION DESCRIPTION CLIENT LEAD ENGINEER SCALE DRAWING NUMBER CHECK DESIGN CHECK DRAWING DESIGNED BY DRAWN BY APPROVAL DATE APPROVAL DATE APPROVED CHK. DES. REV. DATE REVISION DESCRIPTION REFERENCE DRAWING No. 1:100 0 1:200 5m 10m 0 5m 10m 15m 20m 1:500 10m 0 20m 30m 40m 50m 1:1000 0 100m 50m 1:20 0 0.5m 1m 1.5m 2m 0 1:25 0.5m 1m 1.5m 1:33 1/3 2.5m 2m 0 1m 2m 3m 0 1:50 1m 2m 3m 4m 5m CAD FILE NAME: P:0CAD000SPEM** MODEL UPDATED: DWG. FILE UPDATED: MANUAL CHANGES MADE: YES NO YES NO YES NO PROJECT MANAGER ENGINEERING MANAGER AREA PROJECTENGINEER REFERENCE DRAWINGS SAFETY SHARE: APPROVAL DATE CONTRACT NO. SAFETY SHARE : BA6CVA1.IGR NOTICE: THIS DRAWING HAS NOT BEEN PUBLISHED AND IS THE SOLE PROPERTY OF FLUOR AND IS LENT TO THE BORROWER FOR THEIR CONFIDENTIAL USE ONLY, AND IN CONSIDERATION OF THE LOAN OF THIS DRAWING, THE BORROWER PROMISES AND AGREES TO RETURN IT UPON REQUEST AND AGREES THAT IT WILL NOT BE REPRODUCED, COPIED LENT OR OTHERWISE DISPOSED OF DIRECTLY OR INDIRECTLY, NOR USED FOR ANY OTHER PURPOSE OTHER THAN WHICH IT IS FURNISHED. NONE Apr 2011 240K-C2- 3510-WR- -C1A-6"-N 3510-WR-1873-C1A-2-1/2"-N 3510-WR-1872-C1A-2-1/2"-N 3510-SL-1536-R1A-3"-N A 3510 PCV + GLAND SEAL WATER 2974 3900-25J-023 PROCESS WATER 2612 3900-25J-016 FRESH WATER 4232 5100-25J-015
  • 190.
    OP/CL D 4 F B A 3 2 1 5 68 E 7 C REV. APPROVED CHK. DES. REV. DATE REVISION DESCRIPTION CLIENT LEAD ENGINEER SCALE DRAWING NUMBER CHECK DESIGN CHECK DRAWING DESIGNED BY DRAWN BY APPROVAL DATE APPROVAL DATE APPROVED CHK. DES. REV. DATE REVISION DESCRIPTION REFERENCE DRAWING No. 1:100 0 1:200 5m 10m 0 5m 10m 15m 20m 1:500 10m 0 20m 30m 40m 50m 1:1000 0 100m 50m 1:20 0 0.5m 1m 1.5m 2m 0 1:25 0.5m 1m 1.5m 1:33 1/3 2.5m 2m 0 1m 2m 3m 0 1:50 1m 2m 3m 4m 5m CAD FILE NAME: P:0CAD000SPEM** MODEL UPDATED: DWG. FILE UPDATED: MANUAL CHANGES MADE: YES NO YES NO YES NO PROJECT MANAGER ENGINEERING MANAGER AREA PROJECTENGINEER REFERENCE DRAWINGS SAFETY SHARE: APPROVAL DATE CONTRACT NO. SAFETY SHARE : BA6CVA1.IGR NOTICE: THIS DRAWING HAS NOT BEEN PUBLISHED AND IS THE SOLE PROPERTY OF FLUOR AND IS LENT TO THE BORROWER FOR THEIR CONFIDENTIAL USE ONLY, AND IN CONSIDERATION OF THE LOAN OF THIS DRAWING, THE BORROWER PROMISES AND AGREES TO RETURN IT UPON REQUEST AND AGREES THAT IT WILL NOT BE REPRODUCED, COPIED LENT OR OTHERWISE DISPOSED OF DIRECTLY OR INDIRECTLY, NOR USED FOR ANY OTHER PURPOSE OTHER THAN WHICH IT IS FURNISHED. NONE Apr 2011 240K-C2- 3510 02410 ZI 3510 02401 PT 3510 02401 PI 3510 02401 DX 3510 02401 DE 3510 02401 FIT 3510 02401 DIT 3510 02401 DIC 3510 02401 FIC 3510 02401 FY 3510 02401 WQI M TO FLOOR SUMP 3510 02410 XV + 3510 02407 XV + 3510 02417 XV + LIFT POSITION 3510 02401 FE + 10"x3" 10"x3" 3510 02481 II 3510 02481 XA 3510 02481 HS FAULT J/SP 3510 02482 II 3510 02482 XA 3510 02482 HS FAULT (J) JF/JR SP 3510 02408 XV + 3510 02419 XV + FI 3510 02411 OI 3510 02483 II 3510 02483 XA 3510 02483 HS FAULT J/SP 3510 02409 XV + FI 3510 02402 PE 3510 02402 PSH 3510 02402 PAH TO FLOOR 3510 02406 XV + FI 3510 02418 XV + 3510 02484 II 3510 02484 XA 3510 02484 HS FAULT J/SP 3510 02403 PE 3510 02403 PSH 3510 02403 PAH TO FLOOR 3510 02416 XV + FI 3510 02422 XV + FI 3510 02423 XV + FI 3510 02424 XV + FI 3510 02425 XV + 3510 02414 LE 3510 02414 LIT 3510 02414 LIC T3 3510 02485 II 3510 02485 XA 3510 02485 HS FAULT J/SP AFD P1 P1 H, P2 L, P2 LL, P2 5% SLOPE (VENDOR) VENDOR C2-3510-TK-640 C2-3510-PP-641 MIN MIN MIN MIN MIN 3" 6" VENDOR MIN 3"x2" 3"x2" 2% SLOPE MIN 3510 02405 PI 3510 02404 FI 3510 02405 PIT 3510 02404 FIT M L, P2 LL, P1 L, P2 3510 02404 FE + 3"x2" 3"x2" C2-3510-BX-614 C2-3510-TK-614 C2-3510-TM-614 C2-3510-SA-11735 C2-3510-AZ-602 FI FI FI FI FI FI HH, P1 H, P2 SIZE: C2-3510-AZ-602 MO FINAL CONCENTRATE ANALYZER SIZE: C2-3510-SA-11735 MO FINAL CONCENTRATE SAMPLER SIZE: C2-3510-BX-614 MO CONCENTRATE THICKENER FEED BOX SIZE: C2-3510-TK-614 MO CONCENTRATE THICKENER TANK SIZE: 6 m DIA. MOTOR: C2-3510-TM-614 MO CONCENTRATE THICKENER MECHANISM SIZE: MATERIAL: CAPACITY: TRIM: C2-3510-TK-640 MO CONCENTRATE THICKENER O/F TANK SIZE: MATERIAL: MOTOR: C2-3510-PP-641 MO CONCENTRATE THICKENER O/F PUMP MIN. THICKENED MO CONC. MO CONCENTRATE STORAGE TANK, C2-3510-TK-604 2236 3500-25J-026 MO THICKENER O/F MO INTERMEDIATE THICKENER, C2-3510-TK-614 2237 3500-25J-014 FINAL MO CONCENTRATE MO 5TH CLEANER COLUMN CELL, C2-3510-CM-603 2239 3500-25J-022 FILTER MANIF. FLUSH WAT. MO FILTER MANIFOLD WASH WATER RETURN PUMP, 2240 3500-25J-026 DEWATERING AREA SUMP MO DEWATERING AREA SUMP PUMP, C2-3510-PP-636 2241 3500-25J-027 C2-3510-PP-661 PUMP, C2-3910-PP-153 3510-WR-1878-C1A-2"-N T1 3510-SL-1539-R1A-4"-N 3510-PG-1081-C1A-10"-N V 3510-SL-1544-R1A-3"-N 3510-SL-1546-R1A-3"-N 3510-WR-1880-C1A-3"-N 3510-WR-1876-C1A-2"-N 3510-WR-1875-C1A-1-1/2"-N 3510-RE-1013-C1A-2"-N 3510-SL-1542-R1A-6"-N 3510-SL-1547-R1A-3"-N 3510-SL-1574-C1B-2"-N ES 3510-SL-1538-R1A-6"-N ES 3510-WR-1874-C1A-4"-N 3510-DR-1007-C1A-8"-N 3510-SL-1575-C1B-4"-N 3510-WR- -C1A-3"-N ES 3510-SL-1543-R1A-3"-N 3510-WR-1877-C1A-2"-N SPENT PROCESS GAS EQUALIZATION HEADER 2610 3500-25J-022 AG KM LT ISSUED FOR CLIENT REVIEW 22-Dec-11 B RP ISSUED FOR COMBINED REVIEW 30-Jun-11 A 12/22/2011 K. MUNDY A. GUNSON A. REGNAULT L. TAMELIN 12/22/2011 12:11:42 PM WBS: 3510 B PIPING AND INSTRUMENTATION DIAGRAM MOLY PLANT 3500-25J-024 FINAL MO CONCENTRATE AND SAMPLING 3510 02410 XA 3510 02417 XA 3510 02410 ZS 3510 02417 ZS 3510 02407 ZS 3510 02406 XA 3510 02406 ZS 3510 02408 ZS 3510 02408 XA 3510 02418 ZS 3510 02418 XA 3510 02407 XA 3510 02409 ZS 3510 02409 XA 3510 02419 ZS 3510 02419 XA 3510 02422 XA 3510 02422 ZS 3510 02423 XA 3510 02423 ZS 3510 02424 ZS 3510 02424 XA 3510 02425 XA 3510 02425 ZS 3510 02416 XA 3510 02416 ZS OP/CL OP/CL OP/CL OP/CL OP/CL OP/CL OP/CL OP/CL OP/CL OP/CL OP/CL OP/CL SELECT 3510-WR-1874-C1A-2"-N MISMATCH MISMATCH MISMATCH MISMATCH 3510 02401 HY RSP MISMATCH MISMATCH MO FILTER FEED MO FILTER, C2-3510-FL-601 2253 3500-25J-026 SPENT PROCESS GAS EQUALIZATION HEADER 2258 3500-25J-026 3510-SL-1545-R1A-3"-N 3510-SL-1546-R1A-3"-N 3510-SL-1541-R1A-8"-N 3510-SL-1540-R1A-6"-N 4"x2" 3510-PG-1039-C1D-4"-N 3510-WG-1047-C1A-2"-N 3510-PG-1040-C1A-4"-N 3510-PG-1081-C1A-10"-N 3510-WR-1879-C1A-3"-N 3510-N2G-1041-C1D-4"-N 3510-SL-1542-R1A-3"-N T1 T1 C2-3510-PP-613 C2-3510-PP-614 SIZE: MATERIAL: MOTOR: C2-3510-PP-614 MO CONCENTRATE THICKENER UNDERFLOW PUMP NO.2 SIZE: MATERIAL: MOTOR: C2-3510-PP-613 MO CONCENTRATE THICKENER UNDERFLOW PUMP NO.1 AFD AFD FLOCCULANT MO CONCENTRATE FLOCCULANT METERING 2792 3900-25J-007 CONT. PROCESS WATER 2244 3900-25J-016 GLAND SEAL WATER 2975 3900-25J-023
  • 191.
    D 4 F B A 3 2 1 5 68 E 7 C REV. APPROVED CHK. DES. REV. DATE REVISION DESCRIPTION CLIENT LEAD ENGINEER SCALE DRAWING NUMBER CHECK DESIGN CHECK DRAWING DESIGNED BY DRAWN BY APPROVAL DATE APPROVAL DATE APPROVED CHK. DES. REV. DATE REVISION DESCRIPTION REFERENCE DRAWING No. 1:100 0 1:200 5m 10m 0 5m 10m 15m 20m 1:500 10m 0 20m 30m 40m 50m 1:1000 0 100m 50m 1:20 0 0.5m 1m 1.5m 2m 0 1:25 0.5m 1m 1.5m 1:33 1/3 2.5m 2m 0 1m 2m 3m 0 1:50 1m 2m 3m 4m 5m CAD FILE NAME: P:0CAD000SPEM** MODEL UPDATED: DWG. FILE UPDATED: MANUAL CHANGES MADE: YES NO YES NO YES NO PROJECT MANAGER ENGINEERING MANAGER AREA PROJECTENGINEER REFERENCE DRAWINGS SAFETY SHARE: APPROVAL DATE CONTRACT NO. SAFETY SHARE : BA6CVA1.IGR NOTICE: THIS DRAWING HAS NOT BEEN PUBLISHED AND IS THE SOLE PROPERTY OF FLUOR AND IS LENT TO THE BORROWER FOR THEIR CONFIDENTIAL USE ONLY, AND IN CONSIDERATION OF THE LOAN OF THIS DRAWING, THE BORROWER PROMISES AND AGREES TO RETURN IT UPON REQUEST AND AGREES THAT IT WILL NOT BE REPRODUCED, COPIED LENT OR OTHERWISE DISPOSED OF DIRECTLY OR INDIRECTLY, NOR USED FOR ANY OTHER PURPOSE OTHER THAN WHICH IT IS FURNISHED. NONE Apr 2011 240K-C2- 3510 02510 LE 3510 02510 A LT 3510 02510 A LI 3510 02507 XV + FI 3510 02517 XV + FI 3510 02510 LIC T3 3510 02585 II 3510 02585 XA 3510 02585 HS FAULT J/SP T3 3510 02508 XV + FI 3510 02588 II 3510 02588 XA 3510 02588 HS FAULT J/SP 3510 02518 XV + FI 3510 02512 PI 3510 02519 XV + FI 3510 02502 FY 3510 02502 DI 3510 02502 FI 3510 02502 WQI 3510 02502 DIT 3510 02502 DE 3510 02502 FIT 3510 02509 XV + FI M 3510 02513 PI 3510 02502 DX 3510 02501 AE 3510 02501 AIT 3510 02501 AI MASS FLOW 3510 02502 FE + NOTE 1 NOTE 1 PH H, P2 L, P2 LL, P2 SLOPE NOTE 1 NOTE 1 1-1/2"x1" 12"x10" 10" NOTES: 1. MINIMUM DISTANCE TO BE MAINTAINED BETWEEN VALVE AND FITTINGS OR FLANGES. BY VENDOR BY VENDOR BY VENDOR BY VENDOR C2-3510-SA-613 C2-3510-PP-604 C2-3510-PP-603 C2-3510-BX-604 3510 02515 PI 3510 02514 FI 3510 02515 PIT 3510 02514 FIT M 3510 02514 FE + 3"x1" 3"x1" 3"x1" 3"x1" M 3510 02504 FIT 3510 02505 PIT 3510 02505 PI 3510 02504 FI 3510 02504 FE + L, P2 L, P2 LL, P1 12" N12 N10 N5 N6 N2 N1 N4 6" 3/4" 1-1/2" 1-1/2" 1-1/2" 1-1/2" 1-1/2" 1-1/2" 10"O/F L, P2 LL, P1 L, P2 3" 3" MO ROUGHER TAILING MO ROUGHER FLOTATION IN-STREAM ANALIZER, 1884 3500-25J-006 CU CONC. SAMPLE MO ROUGHER ANALYZER, C2-3510-AZ-601 1880 3500-25J-006 SPENT PROCESS GAS EQUALIZATION HEADER 1875 3500-25J-005 MO ROUGHER SCAV. TAIL. ROUGHER SCAVENGER FLOTATION CELL NO. 7, 1876 3500-25J-005 CU CONCENTRATE CU CONCENTRATE THICKENER FEED BOX, 2248 3600-25J-001 R1A 3510-WR-1329-C1A-2"-N SIZE: MATERIAL: MOTOR: C2-3510-PP-604 MO ROUGHER TAILING PUMP NO. 2 3510-SL-1430-R1A-10"-N ES 3510-SL-1435-R1A-4"-N 3510-WG-1091-C1A-1"-N 3510-WG-1048-C1A-1-1/2"-N ES SIZE: MATERIAL: MOTOR: C2-3510-PP-603 MO ROUGHER TAILING PUMP NO. 1 3510-SL-1556-R1A-10"-N ES 3510-SL-1555-R1A-10"-N 3510-SL-1557-R1A-4"-N SIZE: MATERIAL: CAPACITY: TRIM: C2-3510-SA-613 MO ROUGHER TAILING SAMPLER 3510-SL-1553-R1A-10"-N 3510-SL-1554-R1A-10"-N SIZE: MATERIAL: CAPACITY: TRIM: C2-3510-BX-604 MO ROUGHER TAILING PUMPBOX 3510-SL-1558-R1A-8"-N AG KM LT ISSUED FOR CLIENT REVIEW 22-Dec-11 B RP ISSUED FOR COMBINED REVIEW 30-Jun-11 A 12/22/2011 K. MUNDY A. GUNSON A. REGNAULT L. TAMELIN 12/22/2011 2:33:09 PM WBS: 3510 B PIPING AND INSTRUMENTATION DIAGRAM MOLY PLANT 3500-25J-025 MO ROUGHER TAILING AFD AFD 3510 02518 ZS 3510 02518 XA 3510 02517 XA 3510 02517 ZS 3510 02507 ZS 3510 02507 XA 3510 02508 XA 3510 02508 ZS 3510 02519 XA 3510 02509 XA 3510 02519 ZS 3510 02509 ZS OP/CL OP/CL OP/CL OP/CL OP/CL OP/CL PROCESS WATER 2832 3900-25J-016 GLAND SEAL WATER 3323 3900-25J-023 C2-2510-CF-707 C2-3610-BX-001 MISMATCH MISMATCH ES MISMATCH MISMATCH MISMATCH MISMATCH C2-3510-AZ-601 3510-PG-1042-C1A-4"-N VENDOR
  • 192.
    T3 T3 T3 30" OIL COOLER FAN VENDORPLC & CONTROL PANEL 3530 02683 XA 3530 02683 II M 3530 02604 FI L, P2 LL, P1 3530 02605 PI L, P2 3530 02682 HS J/SP 3530 02682 XA 3530 02682 II 3530 02605 PIT 3530 02604 FIT M 3530 02683 HS J/SP 3530 02641 FIT 3530 02615 PIT 3530 02641 FI 3530 02615 PI 3530 02613 PI 3530 02603 PI 3530 02681 HS J/SP 3530 02681 XA 3530 02681 II 3530 02610 LIT M 3530 02610 LE 3530 02610 LI 3530 02620 FIT 3530 02620 DE 3530 02620 DX 3530 02620 FI 3530 02620 DIT 3530 02620 DI 3530 02620 FY 3530 02620 WQI 3530 02603 WE 3530 02603 WIT 3530 02686 HS J/SP 3530 02686 XA 3530 02686 II 3530 02685 HS J/SP 3530 02685 II 3530 02685 XA 3530 02684 II 3530 02684 XA 3530 02684 HS J/SP 3530 02601 LE 3530 02601 LT 3530 02601 A LI 3530 02601 LI 3510 02621 XL 3510 02621 XS MO CONCENTRATE MO CONCENTRATE THICKENER FEEDBOX, 2240 3500-25J-024 C2-3510-BX-614 AFD L, P2 LL, P1 L, P2 AFD FAULT FAULT HH, P2 H, P2 L, P2 LL, P2 FILTER OPERATING FLOOR FLOOR DRAIN MASS FLOW FAULT AFD OIL HEATER FAULT H, P2 L, P2 LL, P1 FAULT FAULT DRUM FILTER HYDRAULIC POWER UNIT HYDRAULIC PUMP VENDOR 2"x1-1/2" V C2-3510-PP-661 C2-3510-TK-612 C2-3510-TK-604 C2-3510-AG-604 C2-3510-TK-607 C2-3510-FL-601 3510-AP-1265-C1A-2"-N 3510-WF-1437-C1A-3"-N 3510-WF-1433-C1A-2"-N 3510-SL-1546-R1A-3"-N FI 3"x1" 3"x1" 1"x1" 1"x1" 3530 02641 FE + 1-1/2"x1" C2-3510-PP-634 C2-3510-PP-635 FI FI 3530 02609 XV + FI 3510-PG-1039-C1A-4"-N 3510-SL-1563-R1B-4"-N 10" 3510-SL-1567-C1B-2"-N 3510-SL- -C1B-4"-N 3510-SL-1571-C1B-4"-N 3510-SL-1574-C1B-2"-N 3510-WG-1092-C1A-1"-N 3510-SL-1565-R1B-4"-N 3510-SL-1562-R1B-4"-N 8"x4" 3510-AP-1265-C1A-2"-N 3510-OLL-1041-S1A-1"-N 3530 02620 FE + V 3530 02622 XV + FI 2"x1-1/2" 6"x1-1/2" 6"x2" C2-3510-HY-601 3/4"x1/2" 4"x3" 3510-SL-1573-C1B-2"-N 1-1/2" 1-1/2" 3" 1-1/2" 1-1/2" 1-1/2" 10" 3" SIZE: MATERIAL: MOTOR: C2-3510-FL-601 MO CONCENTRATE FILTER SIZE: MATERIAL: MOTOR: C2-3510-AG-604 MO CONCENTRATE STORAGE TANK AGITATOR 3510-DR-1008-C1B-4"-N 4"x2" 3" SIZE: MATERIAL: CAPACITY: TRIM: C2-3510-TK-604 MO CONCENTRATE STORAGE TANK SIZE: MATERIAL: MOTOR: C2-3510-PP-634 MO CONCENTRATE PUMP NO. 1 SIZE: MATERIAL: MOTOR: C2-3510-PP-635 MO CONCENTRATE PUMP NO. 2 SIZE: MATERIAL: MOTOR: C2-3510-PP-661 MO FILTRATE MANIFOLD WASH WATER RETURN PUMP SIZE: MATERIAL: CAPACITY: TRIM: C2-3510-TK-612 MO MANIFOLD WASH WATER RETURN TANK SIZE: MATERIAL: CAPACITY: TRIM: C2-3510-TK-607 MO AIR RELEASE TANK SIZE: C2-3510-HY-601 MO FILTER HYDRAULIC UNIT 3510-SL-1566-R1B-4"-N 4"x3" 4"x2" D 4 F B A 3 2 1 5 6 8 E 7 C REV. APPROVED CHK. DES. REV. DATE REVISION DESCRIPTION CLIENT LEAD ENGINEER SCALE DRAWING NUMBER CHECK DESIGN CHECK DRAWING DESIGNED BY DRAWN BY APPROVAL DATE APPROVAL DATE APPROVED CHK. DES. REV. DATE REVISION DESCRIPTION REFERENCE DRAWING No. 1:100 0 1:200 5m 10m 0 5m 10m 15m 20m 1:500 10m 0 20m 30m 40m 50m 1:1000 0 100m 50m 1:20 0 0.5m 1m 1.5m 2m 0 1:25 0.5m 1m 1.5m 1:33 1/3 2.5m 2m 0 1m 2m 3m 0 1:50 1m 2m 3m 4m 5m CAD FILE NAME: P:0CAD000SPEM** MODEL UPDATED: DWG. FILE UPDATED: MANUAL CHANGES MADE: YES NO YES NO YES NO PROJECT MANAGER ENGINEERING MANAGER AREA PROJECTENGINEER REFERENCE DRAWINGS SAFETY SHARE: APPROVAL DATE CONTRACT NO. SAFETY SHARE : BA6CVA1.IGR NOTICE: THIS DRAWING HAS NOT BEEN PUBLISHED AND IS THE SOLE PROPERTY OF FLUOR AND IS LENT TO THE BORROWER FOR THEIR CONFIDENTIAL USE ONLY, AND IN CONSIDERATION OF THE LOAN OF THIS DRAWING, THE BORROWER PROMISES AND AGREES TO RETURN IT UPON REQUEST AND AGREES THAT IT WILL NOT BE REPRODUCED, COPIED LENT OR OTHERWISE DISPOSED OF DIRECTLY OR INDIRECTLY, NOR USED FOR ANY OTHER PURPOSE OTHER THAN WHICH IT IS FURNISHED. NONE Apr 2011 240K-C2- MO CONCENTRATE MO CONCENTRATE THICKENER U/F PUMPS, 2253 3500-25J-024 C2-3510-PP-613/614 MO CONCENTRATE MO CONC. DRYER SCREW FEEDER, C2-3510-CV-601 2256 3500-25J-031 MO CONCENTRATE MO CONC. DRYER SCREW FEEDER, C2-3510-CV-601 2257 3500-25J-031 MO FILTER WATER MO CONC. THICKENER FEEDBOX, C2-3510-BX-614 2258 3500-25J-024 SCRUBBER O/F MO CONC.DRYER WET SCRUBBER, C2-3510-DC-604 2259 3500-25J-031 SCRUBBER BLOWN DOWN MO CONC.DRYER WET SCRUBBER,C2-3510-DC-604 2260 3500-25J-031 SCRUBBER DRAIN MO CONC.DRYER WET SCRUBBER, C2-3510-DC-604 2261 3500-25J-031 SCRUBBER DRAIN MO CONC.DRYER WET SCRUBBER, C2-3510-DC-604 2262 3500-25J-031 INSTRUMENT AIR 2263 3900-25J-022 3530 02619 XV + T1 3530 02604 FE + 3530 02607 XV + 3530 02617 XV + ES V ES ES V ES AG KM LT ISSUED FOR CLIENT REVIEW 22-Dec-11 B RP ISSUED FOR COMBINED REVIEW 30-Jun-11 A 12/22/2011 K. MUNDY A. GUNSON A. REGNAULT L. TAMELIN 12/22/2011 2:43:15 PM WBS: 3510 B PIPING AND INSTRUMENTATION DIAGRAM MOLY PLANT 3500-25J-026 MO CONCENTRATE FILTRATION 3510 02622 ZS 3510 02622 XA OP/CL 3510 02609 XA 3510 02609 ZS OP/CL 3510 02619 XA 3510 02619 ZS OP/CL 3510 02617 ZS 3510 02607 ZS 3510 02617 XA 3510 02607 XA OP/CL OP/CL 3510-WR- -C1A-2"-N GLAND SEAL WATER 2977 3900-25J-023 V V NOTES: 1. MINIMUM DISTANCE TO BE MAINTAINED BETWEEN VALVE AND FITTINGS OR FANGES. MISMATCH MISMATCH MISMATCH MISMATCH MISMATCH NOTE 1 NOTE 1 NOTE 1 NOTE 1 FRESH WATER MO FILTER CLOTH WASH PUMP, C2-3510-PW-659 3570 3500-25J-028 FRESH WATER MO FILTER PRESSING WATER PUMP, C2-3510-PW-668 3571 3500-25J-028 SPENT PROCESS GAS EQUALIZATION HEADER 2236 3500-25J-024 3510-WG-1111-C1A-1-1/2"-N 3510-WR-15917-R1A-1"-N 3510-WR-15918-R1A-1"-N 3510-WR-15919-R1A-1"-N 3510-WR-15920-R1A-1"-N (CHUTE) (CHUTE) 3530-SL-1568-C1B-4"-N 3530-SL-1569-C1B-4"-N 3510-AI-1048-C1D-3/4"-N PROCESS WATER MANIFOLD FLUSH PUMP, C2-3510-PP-658 2267 3500-25J-027 3510-WR-1884-C1A-6"-N COMPRESSED AIR MO DRYING AIR RECEIVER, C2-3510-VS-601 2268 3500-25J-027 3530-SL-1564-R1B-4"-N PROCESS WATER 2276 3900-25J-016
  • 193.
    D 4 F B A 3 2 1 5 68 E 7 C REV. APPROVED CHK. DES. REV. DATE REVISION DESCRIPTION CLIENT LEAD ENGINEER SCALE DRAWING NUMBER CHECK DESIGN CHECK DRAWING DESIGNED BY DRAWN BY APPROVAL DATE APPROVAL DATE APPROVED CHK. DES. REV. DATE REVISION DESCRIPTION REFERENCE DRAWING No. 1:100 0 1:200 5m 10m 0 5m 10m 15m 20m 1:500 10m 0 20m 30m 40m 50m 1:1000 0 100m 50m 1:20 0 0.5m 1m 1.5m 2m 0 1:25 0.5m 1m 1.5m 1:33 1/3 2.5m 2m 0 1m 2m 3m 0 1:50 1m 2m 3m 4m 5m CAD FILE NAME: P:0CAD000SPEM** MODEL UPDATED: DWG. FILE UPDATED: MANUAL CHANGES MADE: YES NO YES NO YES NO PROJECT MANAGER ENGINEERING MANAGER AREA PROJECTENGINEER REFERENCE DRAWINGS SAFETY SHARE: APPROVAL DATE CONTRACT NO. SAFETY SHARE : BA6CVA1.IGR NOTICE: THIS DRAWING HAS NOT BEEN PUBLISHED AND IS THE SOLE PROPERTY OF FLUOR AND IS LENT TO THE BORROWER FOR THEIR CONFIDENTIAL USE ONLY, AND IN CONSIDERATION OF THE LOAN OF THIS DRAWING, THE BORROWER PROMISES AND AGREES TO RETURN IT UPON REQUEST AND AGREES THAT IT WILL NOT BE REPRODUCED, COPIED LENT OR OTHERWISE DISPOSED OF DIRECTLY OR INDIRECTLY, NOR USED FOR ANY OTHER PURPOSE OTHER THAN WHICH IT IS FURNISHED. NONE Apr 2011 240K-C2- T1 3510 02781 II 3510 02781 XA 3510 02781 HS FAULT J/SP 3510 02701 LE 3510 02701 LIT 3510 02701 A LI 3510 02701 LIC 3510 02701 LV + 2"x1-1/2" 2"x1-1/4" H, P2 L, P2 C2-3510-TK-605 C2-3510-PW-658 3510 02783 II 3510 02783 XA 3510 02783 HS FAULT J/SP V V C2-3510-CO-601 SIZE: MATERIAL: CAPACITY: TRIM: C2-3510-TK-605 MO MANIFOLD FLUSH WATER TANK SIZE: MATERIAL: MOTOR: C2-3510-PW-658 MO FLUSH MANIFOLD WATER PUMP NO. 1 SIZE: MATERIAL: MOTOR: C2-3510-CO-601 MO CONCENTRATE DRYING AIR COMPRESSOR 3510 02705 PIT 3510 02705 PI M 3510 02704 FIT 3510 02704 FI L, P2 L, P2 LL, P1 3510 02704 FE + 3510-WR-1884-C1A-2"-N GLAND SEAL WATER 2265 3900-25J-016 PROCESS WATER MO CONCENTRATE FILTER, C2-3510-FL-601 2267 3500-25J-026 COMPRESSED AIR MO CONCENTRATE FILTER C2-3510-FL-601 2268 3500-25J-026 3510-WG-1109-C1A-1-1/2"-N 3510-AP-1265-C1A-2"-N 3510-WR-1319-C1A-2"-N ES AG KM LT ISSUED FOR CLIENT REVIEW 22-Dec-11 B RP ISSUED FOR COMBINED REVIEW 30-Jun-11 A 12/22/2011 K. MUNDY A. GUNSON A. REGNAULT L. TAMELIN 12/22/2011 2:44:45 PM WBS: 3510 B PIPING AND INSTRUMENTATION DIAGRAM MOLY PLANT 3500-25J-027 MO CONC. FILTRATION ANCILLARIES SH. 1 OF 2 V V 3510 02710 PSV + V PSET= 862.00 KPA (G) 3510 02709 PI V V V V DRAIN DIRT POCKET AUTO DRAIN VENDOR C2-3510-VS-601 SIZE: MATERIAL: CAPACITY: TRIM: C2-3510-VS-601 MO CONCENTRATE DRYING AIR RECEIVER V V V T1 2"x1-1/2" 3" TO FLOOR SUMP T1 3510 02782 II 3510 02782 XA 3510 02782 HS FAULT J/SP 2"x1-1/4" C2-3510-PW-758 4"x3" 3510 02708 LI 3510 02786 HS C2-3510-PP-636 3510 02786 XA MO DEWATERING AREA MO CONCENTRATE THICKENER FEEDBOX, 2272 3500-25J-024 J/SP C2-3510-BX-614 3510 02708 LE 3510 02786 II H, P2 HH, P1 L, P2 3510-SL-1575-C1B-4"-N SIZE: MATERIAL: MOTOR: C2-3510-PP-636 MO DEWATERING AREA SUMP PUMP T8 3510 02708 LIT FAULT SIZE: MATERIAL: MOTOR: C2-3510-PW-758 MO FLUSH MANIFOLD WATER PUMP NO. 2 3510 02715 PIT 3510 02715 PI M 3510 02714 FIT 3510 02714 FI L, P2 L, P2 LL, P1 3510 02714 FE + ES 3510 02707 XV + FI 3510 02707 XA MISMATCH 3510 02707 ZS OP/CL 3510 02717 XA MISMATCH 3510 02717 ZS 3510 02717 XV + FI 3510-WR-1883-C1A-2"-N 3510-WR-2019-C1A-2"-N 3510-WG-1120-C1A-1-1/2"-N 3510-WR-1824-C1A-2"-N 3510-AP-1264-C1A-1-1/2"-N TO ATMOSPHERE SUMP CONT. PROCESS WATER 4223 3900-25J-016
  • 194.
    D 4 F B A 3 2 1 5 68 E 7 C REV. APPROVED CHK. DES. REV. DATE REVISION DESCRIPTION CLIENT LEAD ENGINEER SCALE DRAWING NUMBER CHECK DESIGN CHECK DRAWING DESIGNED BY DRAWN BY APPROVAL DATE APPROVAL DATE APPROVED CHK. DES. REV. DATE REVISION DESCRIPTION REFERENCE DRAWING No. 1:100 0 1:200 5m 10m 0 5m 10m 15m 20m 1:500 10m 0 20m 30m 40m 50m 1:1000 0 100m 50m 1:20 0 0.5m 1m 1.5m 2m 0 1:25 0.5m 1m 1.5m 1:33 1/3 2.5m 2m 0 1m 2m 3m 0 1:50 1m 2m 3m 4m 5m CAD FILE NAME: P:0CAD000SPEM** MODEL UPDATED: DWG. FILE UPDATED: MANUAL CHANGES MADE: YES NO YES NO YES NO PROJECT MANAGER ENGINEERING MANAGER AREA PROJECTENGINEER REFERENCE DRAWINGS SAFETY SHARE: APPROVAL DATE CONTRACT NO. SAFETY SHARE : BA6CVA1.IGR NOTICE: THIS DRAWING HAS NOT BEEN PUBLISHED AND IS THE SOLE PROPERTY OF FLUOR AND IS LENT TO THE BORROWER FOR THEIR CONFIDENTIAL USE ONLY, AND IN CONSIDERATION OF THE LOAN OF THIS DRAWING, THE BORROWER PROMISES AND AGREES TO RETURN IT UPON REQUEST AND AGREES THAT IT WILL NOT BE REPRODUCED, COPIED LENT OR OTHERWISE DISPOSED OF DIRECTLY OR INDIRECTLY, NOR USED FOR ANY OTHER PURPOSE OTHER THAN WHICH IT IS FURNISHED. NONE Apr 2011 240K-C2- AG KM LT ISSUED FOR CLIENT REVIEW 22-Dec-11 B NOT USED A 12/22/2011 K. MUNDY A. GUNSON A. REGNAULT L. TAMELIN 12/22/2011 12:15:03 PM WBS: 3510 B PIPING AND INSTRUMENTATION DIAGRAM MOLY PLANT 3500-25J-028 MO CONC. FILTRATION ANCILLARIES SH. 2 OF 2 C2-3510-PW-659 C2-3510-TK-611 C2-3510-PW-759 C2-3510-PW-668 V V 3510-WF-1430-C1A-2"-N FAULT 3510-WF-1428-C1A-4"-N J/SP V 3510-WF-1433-C1A-2"-N 3510-WF-1437-C1A-3"-N 3510 02883 II V 3510-WF-1566-C1A-2"-N SIZE: MATERIAL: CAPACITY: TRIM: C2-3510-TK-682 MO FILTER PRESSING WATER STATION TANK 3510 02883 XA T1 SIZE: MATERIAL: CAPACITY: TRIM: C2-3510-TK-611 MO WASH WATER TANK 3510-WF-1432-C1A-2"-N SIZE: MATERIAL: MOTOR: C2-3510-PW-668 MO FILTER PRESSING WATER STATION PUMP SIZE: MATERIAL: MOTOR: C2-3510-PW-659 MO CLOTH WASH WATER PUMP NO. 1 V SIZE: MATERIAL: MOTOR: C2-3510-PW-759 MO LOTH WASH WATER PUMP NO. 2 V 3510 02883 HS V 3" 3510 02803 PCV + 3510 02802 XV + 3510 02804 PL FAULT J/SP 3510 02801 LIC V T1 3510 02801 LE 3510-WG-1111-C1A-1-1/2"-N 3510 02801 LT 3510 02802 XA 3510 02801 A LI 3510 02802 ZS T1 3510 02884 II FRESH WATER 2266 5100-25J-015 3510 02884 XA 3510 02881 II 3510 02884 HS 3510 02881 XA 3510 02801 LV + GLAND SEAL WATER FILTER FEED PUMPS, C2-3510-PP-634/635 2270 3500-25J-026 3510 02881 HS FAULT C2-3510-TK-682 J/SP 3" 3510-WF-1429-C1A-1-1/2"-N MISMATCH FI 3510 02806 XV + FI 3510 02806 XA MISMATCH 3510 02806 ZS OP/CL C2-3510-PW-660 V 3510 02882 II 3510 02882 XA 3510 02882 HS FAULT J/SP T1 3510 02805 XV + FI 3510 02805 XA MISMATCH 3510 02805 ZS OP/CL V SIZE: MATERIAL: MOTOR: C2-3510-PW-660 MO GLAND WATER BOOSTER PUMP 3510-WG-1110-C1A-2"-N 3510 02807 XA MISMATCH 3510 02807 ZS OP/CL 3510 02807 XV + 3510 02808 XA MISMATCH 3510 02808 ZS OP/CL 3510 02808 XV + 3510-WF-1438-C1A-2"-N FRESH WATER MO CONCENTRATE FILTER, C2-3510-FL-601 3571 3500-25J-026 3510-WF-1435-C1A-3"-N 3510-WF-1436-C1A-3"-N 3510-WF-1529-C1A- -N FRESH WATER MO CONCENTRATE FILTER, C2-3510-FL-601 3570 3500-25J-026 3510-WF-1567-C1A-2"-N 3510-WF-1568-C1A-2"-N 3510 LIC 3510 LE 3510 LT 3510 A LI 3510 LV +
  • 195.
    D 4 F B A 3 2 1 5 68 E 7 C REV. APPROVED CHK. DES. REV. DATE REVISION DESCRIPTION CLIENT LEAD ENGINEER SCALE DRAWING NUMBER CHECK DESIGN CHECK DRAWING DESIGNED BY DRAWN BY APPROVAL DATE APPROVAL DATE APPROVED CHK. DES. REV. DATE REVISION DESCRIPTION REFERENCE DRAWING No. 1:100 0 1:200 5m 10m 0 5m 10m 15m 20m 1:500 10m 0 20m 30m 40m 50m 1:1000 0 100m 50m 1:20 0 0.5m 1m 1.5m 2m 0 1:25 0.5m 1m 1.5m 1:33 1/3 2.5m 2m 0 1m 2m 3m 0 1:50 1m 2m 3m 4m 5m CAD FILE NAME: P:0CAD000SPEM** MODEL UPDATED: DWG. FILE UPDATED: MANUAL CHANGES MADE: YES NO YES NO YES NO PROJECT MANAGER ENGINEERING MANAGER AREA PROJECTENGINEER REFERENCE DRAWINGS SAFETY SHARE: APPROVAL DATE CONTRACT NO. SAFETY SHARE : BA6CVA1.IGR NOTICE: THIS DRAWING HAS NOT BEEN PUBLISHED AND IS THE SOLE PROPERTY OF FLUOR AND IS LENT TO THE BORROWER FOR THEIR CONFIDENTIAL USE ONLY, AND IN CONSIDERATION OF THE LOAN OF THIS DRAWING, THE BORROWER PROMISES AND AGREES TO RETURN IT UPON REQUEST AND AGREES THAT IT WILL NOT BE REPRODUCED, COPIED LENT OR OTHERWISE DISPOSED OF DIRECTLY OR INDIRECTLY, NOR USED FOR ANY OTHER PURPOSE OTHER THAN WHICH IT IS FURNISHED. NONE Apr 2011 240K-C2- 3510 03181 II 3510 03181 XA 3510 03181 HS FAULT J/SP 3510 03182 II 3510 03182 XA 3510 03182 HS FAULT J/SP 3510 03101 LE 3510 03101 LT 3510 03101 A LI 3510 03101 LI 3510 03183 HS 3510 03102 XV + 3510 03103 WE 3510 03103 WIT 3510 03103 WQI 3510 03103 WI 3510 03103 WQI A B HH, P1 H, P2 TO ATM 2-1/2"x2" 2"x1-1/2" 2"x1-1/2" V V V V V V V V 6"x4" 3"x2-1/2" 3"x2-1/2" 3"x2-1/2" (TYP. 4) 2"x1" (TYP. 2) 2"x1" 2"x1-1/2" V V 6" (VENDOR SUPPLIED STACK) 2"x1" 2"x1" 4"x3" 4"x3" C2-3510-CV-601 C2-3510-ST-685 C2-3510-BN-603 C2-3510-FE-621 C2-3510-ZM-608 C2-3510-ME-011 C2-3510-CH-602 THERMAL OIL HEATER HEATER PRIMARY PUMP SKID EXPANSION / DRAIN SYSTEM NITROGEN BLANKET MANIFOLD MO CONCENTRATE DRYER SCRUBBER HEATER SECONDARY SKID C2-3510-ST-681 C2-3510-DR-601 3510 03183 II 3510 03183 XA FAULT J/SP FI SCRUBBER OVERFLOW MO MANIFOLD WASH WATER RETURN TANK, 2259 3500-25J-026 SCRUBBER BLOWDOWN MO MANIFOLD WASH WATER RETURN TANK, 2260 3500-25J-026 SCRUBBER DRAIN MO MANIFOLD WASH WATER RETURN TANK, 2261 3500-25J-026 SCRUBBER DRAIN MO MANIFOLD WASH WATER RETURN TANK, 2262 3500-25J-026 PROCESS WATER 2273 3900-25J-014 NITROGEN NITROGEN VAPOURIZER, C2-3510-ZM-528 2274 3500-25J-041 HEATING OIL 2275 MO CONCENTRATE MO FILTER, C2-3510-FL-601 2256 3500-25J-026 MO CONCENTRATE MO FILTER, C2-3510-FL-601 2257 3500-25J-026 T1 T1 T1 3510-OT-1011-C2H-3"-H SIZE: C2-3510-ZM-608 MO CONCENTRATE PACKAGING SYSTEM SIZE: C2-3510-ME-011 MOLY PACKAGING AREA FORKLIFT 3510-OT-1016-C2H-1"-P 3510-OT-1019-C2H-2"-H SIZE: C2-3510-ST-681 FILTERED MO CONCENTRATE HOPPER 3510-OT-1015-C2H-1"-P 3510-OT-1001-C2H-1"-N 3510-OT-1018-C2H-2"-H 3510-OT-1013-C2H-3"-H 3510-WR-1889-C1A-1"-N 3510-WR-1887-C1A-1"-N 3510-OT-1005-C2H-1"-H 3510-OT-1020-C2H-2"-H SIZE: MATERIAL: MOTOR: C2-3510-CV-601 MO CONCENTRATE DRYER SCREW FEEDER 3510-N2G-1014-C1D-1/4"-N 3510-WR-1888-C1A-1"-N ES 3510-N2G-1015-C1D-1/4"-N 3510-AA-1005-S1A-4"-P SIZE: MATERIAL: MOTOR: C2-3510-DR-601 MO CONCENTRATE DRYER 3510-OT-1010-C2H-1"-H 3510-OT-1008-C2H-1-1/2"-N 3510-OT-1007-C2H-3"-H 3510-OT-1017-C2H-2"-H SIZE: C2-3510-ST-685 MOLY CONCENTRATE SCREW FEEDER FLEXIBLE JOINT PIECE 3510-AA-1004-S1A-6"-P 3510-OT-1006-C2H-1"-H 3510-OT-1012-C2H-1"-H 3510-OT-1003-C2H-1"-H 3510-OT-1004-C2H-1"-N SIZE: MATERIAL: CAPACITY: TRIM: C2-3510-BN-603 DRIED MOLY CONCENTRATE STORAGE BIN 3510-OT-1007-C2H-3"-H 3510-OT-1023-C2H-2"-H 3510-OT-1018-C2H-2"-H SIZE: MATERIAL: MOTOR: C2-3510-CH-602 DRYING MO AREA HOIST SIZE: MATERIAL: MOTOR: C2-3510-FE-621 MO CONCENTRATE ROTARY VALVE 3510-OT-1021-C2H-2"-H 3510-WR-1886-C1A-1"-N 3510-OT-1017-C2H-2"-H 3510-OT-1022-C2H-2"-H 3510-OT-1024-C2H-3"-H 3510-OT-1009-C2H-3"-H 3510-WR-1885-C1A-1"-N 3510-OT-1014-C2H-1-1/2"-H 3510-OT-1013-C2H-3"-H AG KM LT ISSUED FOR CLIENT REVIEW 22-Dec-11 B RP ISSUED FOR COMBINED REVIEW 30-Jun-11 A 12/22/2011 K. MUNDY A. GUNSON A. REGNAULT L. TAMELIN 12/21/2011 8:34:52 PM WBS: 3510 B PIPING AND INSTRUMENTATION DIAGRAM MOLY PLANT 3500-25J-031 MO CONCENTRATE DRYING & PACKAGING 3510 03102 ZS 3510 03102 XA OP/CL C2-3510-TK-612 C2-3510-TK-612 C2-3510-TK-612 C2-3510-TK-612 MISMATCH V V V V V V 3510 03105 B WE 3510 03105 A WE 3510 03105 A WT 3510 03105 B WT 3510 03105 WI CHUTE CHUTE 3510-AA-1003-S1A-6"-P 3510-OT-1002-C2H-1"-N C2-3510-ZM-601 C2-3510-ZM-601 C2-3510-ZM-601 C2-3510-ZM-601 SIZE: C2-3510-ZM-601 MO MEDIUM HEATING SYSTEM VENDOR VENDOR VENDOR VENDOR VENDOR SIZE: MOTOR: C2-3510-DC-604 MO CONCENTRATE DRYER SCRUBBER C2-3510-DC-604 VENDOR VENDOR C2-3510-ZM-601
  • 196.
    D 4 F B A 3 2 1 5 68 E 7 C REV. APPROVED CHK. DES. REV. DATE REVISION DESCRIPTION CLIENT LEAD ENGINEER SCALE DRAWING NUMBER CHECK DESIGN CHECK DRAWING DESIGNED BY DRAWN BY APPROVAL DATE APPROVAL DATE APPROVED CHK. DES. REV. DATE REVISION DESCRIPTION REFERENCE DRAWING No. 1:100 0 1:200 5m 10m 0 5m 10m 15m 20m 1:500 10m 0 20m 30m 40m 50m 1:1000 0 100m 50m 1:20 0 0.5m 1m 1.5m 2m 0 1:25 0.5m 1m 1.5m 1:33 1/3 2.5m 2m 0 1m 2m 3m 0 1:50 1m 2m 3m 4m 5m CAD FILE NAME: P:0CAD000SPEM** MODEL UPDATED: DWG. FILE UPDATED: MANUAL CHANGES MADE: YES NO YES NO YES NO PROJECT MANAGER ENGINEERING MANAGER AREA PROJECTENGINEER REFERENCE DRAWINGS SAFETY SHARE: APPROVAL DATE CONTRACT NO. SAFETY SHARE : BA6CVA1.IGR NOTICE: THIS DRAWING HAS NOT BEEN PUBLISHED AND IS THE SOLE PROPERTY OF FLUOR AND IS LENT TO THE BORROWER FOR THEIR CONFIDENTIAL USE ONLY, AND IN CONSIDERATION OF THE LOAN OF THIS DRAWING, THE BORROWER PROMISES AND AGREES TO RETURN IT UPON REQUEST AND AGREES THAT IT WILL NOT BE REPRODUCED, COPIED LENT OR OTHERWISE DISPOSED OF DIRECTLY OR INDIRECTLY, NOR USED FOR ANY OTHER PURPOSE OTHER THAN WHICH IT IS FURNISHED. NONE Apr 2011 240K-C2- AG KM LT ISSUED FOR CLIENT REVIEW 22-Dec-11 B RP ISSUED FOR COMBINED REVIEW 30-Jun-11 A 12/22/2011 K. MUNDY A. GUNSON A. REGNAULT L. TAMELIN 12/22/2011 2:47:23 PM WBS: 3510 B PIPING AND INSTRUMENTATION DIAGRAM MOLY PLANT 3500-25J-032 SODIUM SILICATE STORAGE AND DISTRIBUTION T1 H, P2 L, P2 LL, P1 3510 03283 XA 3510 03211 LE 3510 03211 LSH 3510 03211 LAH 3510 03283 II 3510 03212 LE 3510 03217 PI 3510 03282 XA 3510 03283 HS J/SP 3510 03212 LT 3510 03212 A LI 3510 03212 LI 3510 03282 II 3510 03282 HS J/SP 3510 03221 FSH 3510 03221 FAH M 3510 03204 B FIT 3510 03204 B FIC 3510 03204 FRIC 3510 03203 TE 3510 03203 TT 3510 03203 TI 3510 03201 LE 3510 03201 LSH 3510 03201 LAH 3510 03202 LE 3510 03202 LT 3510 03202 A LI 3510 03202 LI M 3510 03204 A FIT 3510 03204 A FIC 3510 03222 XL FAULT FAULT O/F VENDOR ES ES 3510 03204 A FE + V 3510 03211 XA + V C2-3510-PP-648 V V V ES V V V 3510 03215 PCV + C2-3510-PP-647 3510 03222 XA + ES 3" PL 3" PL PL 1" PL 1-1/2" PL PL 1" PL 4"x3" PL SP CH 3"x2" 4"x3" CH 3510 03204 B FE + BU 3510 03201 XA + 3"x4" 3"x2" 3"x2" 3510 03204 FV + BU FO V V V PL 1" PL O/F 1-1/2" 1-1/2" 3" 3" 3510-WR-1890-C1A-3"-N 3510-RS-1001-S1B-3"-ET 3510-RS-1005-S1B-3"-ET 3510-RS-1009-S1B-3"-N C2-3510-TK-606 C2-3510-PP-642 C2-3510-ZM-661 C2-3510-TK-624 SIZE: MATERIAL: MOTOR: C2-3510-PP-642 SODIUM SILICATE TRANSFER PUMP SIZE: MATERIAL: MOTOR: C2-3510-ZM-661 SODIUM SILICATE INLINE MIXER SIZE: MATERIAL: CAPACITY: TRIM: C2-3510-TK-606 SODIUM SILICATE STORAGE TANK SIZE: MATERIAL: CAPACITY: TRIM: C2-3510-TK-624 SODIUM SILICATE DISTRIBUTION TANK SIZE: MATERIAL: MOTOR: C2-3510-PP-647 SODIUM SILICATE DISTRIBUTION PUMP NO. 1 SIZE: MATERIAL: MOTOR: C2-3510-PP-648 SODIUM SILICATE DISTRIBUTION PUMP NO. 2 C2-3510-ES-601 SIZE: C2-3510-ES-601 MOLY REAGENTS AREA SAFETY SHOWER N2 N8 N1 N1 N8 N9 N4 H, P2 L, P2 LL, P1 DOMESTIC WATER 2808 5400-25J-022 3510-WD-1034-G1A-1-1/2"-N 3510 03206 FE + 3510 03206 FIC 3510 03206 FI ES H, P2 L, P2 3510 03216 FE + 3510 03216 FIC 3510 03216 FI ES H, P2 L, P2 3510 03226 FE + 3510 03226 FIC 3510 03226 FI ES H, P2 L, P2 MO 3RD CLEANER FEED PUMPBOX, C2-3510-BX-610 2227 3500-25J-017 MO 5TH CLEANER FEED PUMPBOX, C2-3510-BX-612 2615 3500-25J-022 MO 1ST CLEANER CONDITIONING TANK, 2810 3500-25J-007 C2-3510-TK-603 C2-3510-ZM-643 C2-3510-ZM-644 C2-3510-ZM-645 SIZE: C2-3510-ZM-645 SODIUM SILICATE INJECTOR NO.3 SIZE: C2-3510-ZM-644 SODIUM SILICATE INJECTOR NO.2 SIZE: C2-3510-ZM-643 SODIUM SILICATE INJECTOR NO.1 TO FLOOR TO FLOOR 3510-RS-1014-S1B-2"-N 3510-RS-1015-S1B-2"-N 3510-RS-1016-S1B-2"-N T1 T1 3510 03281 HS 3510 03281 II 3510 03281 XA FAULT J/SP V V V V FC S S S V V V V V V V V V 3510-RS-1004-S1B-4"-N 3510-RS-1006-S1B-3"-N 3510-RS-1009-S1B-1"-N 3510-RS-1010-S1B-2"-N 3510-RS-1013-S1B-2"-N 3510-RS-1012-S1B-2"-N VENDOR VENDOR VENDOR 3510 03226 FE + 3510 03226 FIC 3510 03226 FI ES H, P2 L, P2 MO CLEANER SCAV. FLOTATION, C2-3510-CF-721 3793 3500-25J-012 C2-3510-ZM-652 3510-RS-1024-S1B-2"-N S V V V 3510-RS-1019-S1B-2"-N VENDOR SIZE: C2-3510-ZM-652 SODIUM SILICATE INJECTOR NO.4 N3 N10 N2 N6 N5 N7 N4 N3 N5 N6 N7 N9 PROCESS WATER 4222 3900-25J-016
  • 197.
    S 3510 03336 FIC 3510 03336 FI 3510 03307 PI 3510 03321 FI 3510 03321 FIC 3510 03311 FIC 3510 03311 FI 3510 03303 LS 3510 03302 LSH 3510 03302 LAH P2 3510 03304 XL 3510 03301 LE 3510 03301 LT 3510 03301 A LI 3510 03301 A LI 3510 03306 PDI S 3510 03333 FI 3510 03333 FIC S 3510 03341 FIC 3510 03341 FI 3510 03309 ZS OP/CL 3510 03309 XAMISMATCH 3510 03381 II 3510 03381 XA 3510 03381 HS J/SP 3510 03310 FI 3510 03310 FIC S S S 3510 03334 FI S S 3510 03335 FI 3510 03335 FIC 3510 03334 FIC S 3510 03351 FI S S 3510 03351 FIC 3510 03331 FI 3510 03331 FIC 3510 03332 FI 3510 03332 FIC VENDOR PLANT AIR 2880 3900-25J-017 MO 1ST CLEANER CONC. LAUNDER, C2-3510-LA-615 2882 3500-25J-007 ROUGHER SCAV. CONC. LAUNDER, C2-3510-LA-612 2885 3500-25J-005 CL SCAV. CONC. LAUNDER NO. 2, C2-3410-LA-515 4117 3400-25J-047 ROUGHER FLOTATION CONC. LAUNDER, C2-3510-LA-600 3587 3500-25J-003 CU COLUMN CELL NO. 4, C2-3430-CM-504 4120 3400-25J-035 CU COLUMN CELL NO. 5, C2-3430-CM-505 4119 3400-25J-036 CU COLUMN CELL NO. 6, C2-3430-CM-506 4121 3400-25J-036 CL SCAV. CONC. LAUNDER NO. 1, C2-3410-LA-512 4113 3400-25J-047 CU COLUMN CELL NO. 1, C2-3430-CM-501 4115 3400-25J-033 CU COLUMN CELL NO. 2, C2-3430-CM-502 4114 3400-25J-034 CU COLUMN CELL NO. 3, C2-3430-CM-503 4116 3400-25J-034 ISO CONTAINER HH, P1 H, P2 L, P2 H, P2 L, P2 VENDOR FAULT H, P2 L, P2 VENDOR H, P2 L, P2 VENDOR VENDOR H, P2 L, P2 VENDOR H, P2 L, P2 VENDOR H, P2 L, P2 VENDOR H, P2 L, P2 VENDOR H, P2 L, P2 H, P2 L, P2 VENDOR VENDOR VENDOR H, P2 L, P2 H, P2 L, P2 3510-RC-1144-C1D-1-1/2"-N 1"x3/8" 3510 03351 FE + ES C2-3510-ZM-650 ES 3510-RC- -C1D-1"-N 3510-RC-1144-C1D-1"-N V C2-3510-ZM-653 V V V V V V V ES V 3510-RC-1152-C1D-1"-N 3510-RC- -C1D-1"-N 3510-RC- -C1D-1"-N 3510-RC-1147-C1D-1"-N SIZE: C2-3510-ZM-650 DEFOAMER INJECTOR NO. 5 V 3510-RC- -C1D-1"-N 3510 03332 FE + SIZE: C2-3510-ZM-652. DEFOAMER INJECTOR NO. 7 SIZE: C2-3510-ZM-651 DEFOAMER INJECTOR NO. 6 ES 3510 03331 FE + C2-3510-ZM-652. C2-3510-ZM-651 SIZE: C2-3510-ZM-653 DEFOAMER INJECTOR NO. 8 V V V V V V V 3510 03333 FE + 3510-RC- -C1D-1"-N V SIZE: C2-3510-ZM-655 DEFOAMER INJECTOR NO. 10 SIZE: C2-3510-ZM-656 DEFOAMER INJECTOR NO. 11 SIZE: C2-3510-ZM-654 DEFOAMER INJECTOR NO. 9 3510-RC- -C1D-1"-N 3510-RC- -C1D-1"-N 3510-RC- -C1D-1"-N 3510-RC- -C1D-1"-N 3510-RC- -C1D-1"-N V V C2-3510-ZM-654 C2-3510-ZM-655 3510 03334 FE + ES 3510 03335 FE + ES C2-3510-ZM-656 3510-RC- -C1D-1"-N ES V 3510 03336 FE + V V V V V V V V V FI 3510 03309 XV + V V C2-3510-ZM-646 ES 3510 03310 FE + 3510-RC-1166-C1D-1"-N 3510-RC-1165-C1D-1"-N SIZE: C2-3510-ZM-646 DEFOAMER INJECTOR NO. 1 N10 N8 N9 AG KM LT ISSUED FOR CLIENT REVIEW 22-Dec-11 B RP ISSUED FOR COMBINED REVIEW 13-Jul-11 A 12/22/2011 K. MUNDY A. GUNSON A. REGNAULT L. TAMELIN 12/22/2011 2:49:50 PM WBS: 3510 B PIPING AND INSTRUMENTATION DIAGRAM MOLY PLANT 3500-25J-033 MOLY DEFOAMER STORAGE AND DISTRIBUTION M1 N11 N5 N12 N3 N13 N6 N14 N4 N7 3510 03305 PCV + 3510 03308 PCV + 3510 03304 XA + 4"x2" 3"x1" 3"x1/2" N1 3" 3" 3" 3" 3" 3" 3" 3" 4" 4" 4" 20" 24" 3" V V V V V V V V V V 1-1/2"x1/2" 3510-RC-1143-C1D-1"-N 3510-RC-1145-C1D-1"-N 3510-RC-1146-C1D-1"-N 3510-RC-1151-C1D-1"-N 3510-RC-1150-C1D-1"-N 3510-RC-1142-C1D-3"-N C2-3510-TK-608 C2-3510-PP-646 C2-3510-ZM-647 C2-3510-ZM-648 SIZE: C2-3510-ZM-647 DEFOAMER INJECTOR NO. 2 SIZE: C2-3510-ZM-648 DEFOAMER INJECTOR NO. 3 SIZE: MATERIAL: MOTOR: C2-3510-PP-646 DEFOAMER DISTRIBUTION PUMP SIZE: MATERIAL: CAPACITY: TRIM: C2-3510-TK-608 DEFOAMER STORAGE TANK 3510 03311 FE + ES 3510 03321 FE + ES C2-3510-ZM-649 SIZE: C2-3510-ZM-649 DEFOAMER INJECTOR NO. 4 3510-RC- -C1D-2"-N 3510-RC- -C1D-1"-N 3510-RC- -C1D-1"-N ES V 3510 03341 FE + V V 3510-AP-1226-C1D-2"-N D 4 F B A 3 2 1 5 6 8 E 7 C REV. APPROVED CHK. DES. REV. DATE REVISION DESCRIPTION CLIENT LEAD ENGINEER SCALE DRAWING NUMBER CHECK DESIGN CHECK DRAWING DESIGNED BY DRAWN BY APPROVAL DATE APPROVAL DATE APPROVED CHK. DES. REV. DATE REVISION DESCRIPTION REFERENCE DRAWING No. 1:100 0 1:200 5m 10m 0 5m 10m 15m 20m 1:500 10m 0 20m 30m 40m 50m 1:1000 0 100m 50m 1:20 0 0.5m 1m 1.5m 2m 0 1:25 0.5m 1m 1.5m 1:33 1/3 2.5m 2m 0 1m 2m 3m 0 1:50 1m 2m 3m 4m 5m CAD FILE NAME: P:0CAD000SPEM** MODEL UPDATED: DWG. FILE UPDATED: MANUAL CHANGES MADE: YES NO YES NO YES NO PROJECT MANAGER ENGINEERING MANAGER AREA PROJECTENGINEER REFERENCE DRAWINGS SAFETY SHARE: APPROVAL DATE CONTRACT NO. SAFETY SHARE : BA6CVA1.IGR NOTICE: THIS DRAWING HAS NOT BEEN PUBLISHED AND IS THE SOLE PROPERTY OF FLUOR AND IS LENT TO THE BORROWER FOR THEIR CONFIDENTIAL USE ONLY, AND IN CONSIDERATION OF THE LOAN OF THIS DRAWING, THE BORROWER PROMISES AND AGREES TO RETURN IT UPON REQUEST AND AGREES THAT IT WILL NOT BE REPRODUCED, COPIED LENT OR OTHERWISE DISPOSED OF DIRECTLY OR INDIRECTLY, NOR USED FOR ANY OTHER PURPOSE OTHER THAN WHICH IT IS FURNISHED. NONE Apr 2011 240K-C2- SET: SET:
  • 198.
    T1 T1 O/F VENDOR 3510 03401 LI 3510 03401 LT 3510 03407 PI 3510 03482 XA 3510 03481 HS J/SP 3510 03406 PDI 3510 03482 HS J/SP S 3510 03408 FIC 3510 03401 LI HH, P1 H,P2 L, P2 3510 03404 XL 3910 03482 II 3510 03401 LE 3510 03403 LS 3510 03481 II 3510 03402 LAH 3510 03481 XA 3510 03402 LSH FAULT VENDOR P2 FAULT 4" N5 V N10 4"x3" 3" C2-3510-TK-665 N13 N12 1-1/2"x1" V 3" N8 3" N11 1"x1" AG KM LT ISSUED FOR CLIENT REVIEW 22-Dec-11 B NOT USED A 12/22/2011 K. MUNDY A. GUNSON A. REGNAULT L. TAMELIN 12/22/2011 2:51:03 PM WBS: 3510 B PIPING AND INSTRUMENTATION DIAGRAM MOLY PLANT 3500-25J-034 MO COLLECTOR STORAGE AND DISTRIBUTION V 4" N3 V V V N4 3510-RC-1164-C1D-1"-N 20" C2-3510-PP-643 N1 V 3" N2 3" V 3"x1-1/2" N9 3" 3" 3510-RC-1160-C1D-3"-N C2-3510-PP-644 N6 V V 3510 03405 PCV + 3" M1 N7 3"x1" V 3" 3510 03404 XA + 3" V V V 3510- -1161-C1D-3"-N 24" 3510-RC-1163-C1D-1"-N 3510 03408 FE + D 4 F B A 3 2 1 5 6 8 E 7 C REV. APPROVED CHK. DES. REV. DATE REVISION DESCRIPTION CLIENT LEAD ENGINEER SCALE DRAWING NUMBER CHECK DESIGN CHECK DRAWING DESIGNED BY DRAWN BY APPROVAL DATE APPROVAL DATE APPROVED CHK. DES. REV. DATE REVISION DESCRIPTION REFERENCE DRAWING No. 1:100 0 1:200 5m 10m 0 5m 10m 15m 20m 1:500 10m 0 20m 30m 40m 50m 1:1000 0 100m 50m 1:20 0 0.5m 1m 1.5m 2m 0 1:25 0.5m 1m 1.5m 1:33 1/3 2.5m 2m 0 1m 2m 3m 0 1:50 1m 2m 3m 4m 5m CAD FILE NAME: P:0CAD000SPEM** MODEL UPDATED: DWG. FILE UPDATED: MANUAL CHANGES MADE: YES NO YES NO YES NO PROJECT MANAGER ENGINEERING MANAGER AREA PROJECTENGINEER REFERENCE DRAWINGS SAFETY SHARE: APPROVAL DATE CONTRACT NO. SAFETY SHARE : BA6CVA1.IGR NOTICE: THIS DRAWING HAS NOT BEEN PUBLISHED AND IS THE SOLE PROPERTY OF FLUOR AND IS LENT TO THE BORROWER FOR THEIR CONFIDENTIAL USE ONLY, AND IN CONSIDERATION OF THE LOAN OF THIS DRAWING, THE BORROWER PROMISES AND AGREES TO RETURN IT UPON REQUEST AND AGREES THAT IT WILL NOT BE REPRODUCED, COPIED LENT OR OTHERWISE DISPOSED OF DIRECTLY OR INDIRECTLY, NOR USED FOR ANY OTHER PURPOSE OTHER THAN WHICH IT IS FURNISHED. NONE Apr 2011 240K-C2- 3510 03408 FI V V V VENDOR SIZE: MATERIAL: CAPACITY: TRIM: C2-3510-TK-665 MOLY COLLECTOR TANK SIZE: MATERIAL: MOTOR: C2-3510-PP-644 MOLY COLLECTOR PUMP NO. 2 SIZE: MATERIAL: MOTOR: C2-3510-PP-643 MOLY COLLECTOR PUMP NO. 1 SIZE: MOTOR: C2-3510-ZM-640 MO COLLECTOR INJECTOR V V 3510-RC-1162-C1D-1-1/2"-N C2-3510-ZM-640 MO COLLECTOR MO 1ST CLEANER COND. TANK, C2-3510-TK-603 2486 3500-25J-007
  • 199.
    T8 T1 T1 TO FLOOR H, P2 L, P2 LL,P1 3510 03583 XA 3510 03584 XA 3510 03511 LE 3510 03511 LSH 3510 03515 LI 3510 03511 LAH 3510 03515 A LI 3510 03583 II 3510 03512 LE 3510 03516 PI 3510 03582 XA 3510 03507 FIT 3510 03583 HS J/SP M 3510 03585 XA 3510 03584 II 3510 03512 LT 3510 03512 A LI 3510 03512 LI 3510 03515 LT 3510 03585 HS J/SP 3510 03582 II 3510 03515 LE 3510 03584 HS J/SP 3510 03582 HS J/SP 3510 03585 II 3510 03517 PDI 3510 03521 FSH 3510 03521 FAH M 3510 03504 B FIT 3510 03504 B FIC 3510 03504 FRIC 3510 03503 TE TO FLOOR 3510 03503 TT 3510 03503 TI 3510 03501 LE 3510 03501 LSH 3510 03501 LAH 3510 03502 LE 3510 03502 LT 3510 03502 A LI 3510 03502 LI M 3510 03504 A FIT 3510 03504 A FIC 3510 03587 HS J/SP 3510 03587 XA 3510 03587 II 3510 03505 LE 3510 03505 LIT 3510 03505 LI 3510 03586 HS J/SP 3510 03586 II 3510 03586 XA 3510 03508 AIT 3510 03508 AE 3510 03508 AI HH, P1 3510 03522 XL FAULT FAULT HEATER FAULT FAULT FAULT H2S TO FLOOR O/F S1B VENDOR 1" PL 4"x3" ES ES 3510 03504 A FE + V 3510 03511 XA + 3510 03506 XV + FC 3"x2" C2-3510-CN-604 N2 V C2-3510-PP-164 V V V ES 3510 03507 FE + ES V N1 C2-3510-PP-160 V V 3510 03515 PCV + C2-3510-PP-163 3510 03522 XA + ES FC 3510 03517 ZV + ES 3" PL 3" PL 3" PL PL 1" PL 1-1/2" PL PL 1" PL 4"x3" PL SP-3500-006 CH 3"x2" 4"x3" CH 3510 03504 B FE + BU 3510 03501 XA + 6"x4" 3"x2" 3"x2" 3510 03504 FV + 10"x8" BU PL PL PL FO V V V BA PL 1" PL PL D 4 F B A 3 2 1 5 6 8 E 7 C REV. APPROVED CHK. DES. REV. DATE REVISION DESCRIPTION CLIENT LEAD ENGINEER SCALE DRAWING NUMBER CHECK DESIGN CHECK DRAWING DESIGNED BY DRAWN BY APPROVAL DATE APPROVAL DATE APPROVED CHK. DES. REV. DATE REVISION DESCRIPTION REFERENCE DRAWING No. 1:100 0 1:200 5m 10m 0 5m 10m 15m 20m 1:500 10m 0 20m 30m 40m 50m 1:1000 0 100m 50m 1:20 0 0.5m 1m 1.5m 2m 0 1:25 0.5m 1m 1.5m 1:33 1/3 2.5m 2m 0 1m 2m 3m 0 1:50 1m 2m 3m 4m 5m CAD FILE NAME: P:0CAD000SPEM** MODEL UPDATED: DWG. FILE UPDATED: MANUAL CHANGES MADE: YES NO YES NO YES NO PROJECT MANAGER ENGINEERING MANAGER AREA PROJECTENGINEER REFERENCE DRAWINGS SAFETY SHARE: APPROVAL DATE CONTRACT NO. SAFETY SHARE : BA6CVA1.IGR NOTICE: THIS DRAWING HAS NOT BEEN PUBLISHED AND IS THE SOLE PROPERTY OF FLUOR AND IS LENT TO THE BORROWER FOR THEIR CONFIDENTIAL USE ONLY, AND IN CONSIDERATION OF THE LOAN OF THIS DRAWING, THE BORROWER PROMISES AND AGREES TO RETURN IT UPON REQUEST AND AGREES THAT IT WILL NOT BE REPRODUCED, COPIED LENT OR OTHERWISE DISPOSED OF DIRECTLY OR INDIRECTLY, NOR USED FOR ANY OTHER PURPOSE OTHER THAN WHICH IT IS FURNISHED. NONE Apr 2011 240K-C2- 1/2" PL 1/2" PL SP-3500-007 1/2" BA 10"x6" O/F CH SP-3500-005 PL 1-1/2" PL 1-1/2" 1-1/2" 3" 6"x3" 1-1/2" 1-1/2" 3" 14"x8" 3510-WR-1306-C1A-4"-N 3510-WR-1306-C1A-4"-N 3510-WR-1891-C1A-3"-N 3510-WR-1892-C1A-1"-N 3510-RS-1036-S1B-3"-N 3510-RS-1017-S1B-3"-H 3510-RS-1021-S1B-3"-N 3510-RS-1034-S1B-8"-N 3510-RS-1040-S1B-3"-N 3510-RS-1025-S1B-3"-N 3510-RS-1033-S1B-3"-N 3510-RS-1038-S1B-3"-N 3510-RS-1039-S1B-3"-N 3510-RS-1037-S1B-1-1/2"-N NAHS SOLUTION NAHS DISTRIBUTION 1840 3500-25J-037 3510-RS-1026-S1B-2"-N DOMESTIC WATER 2759 5400-25J-022 3510-WD-1019-G1A-1-1/2"-N H, P2 L, P2 LL, P1 NAHS AREA SUMP CONT. CU-MO THICKENER FEED BOX, C2-3510-BK-003 1861 3500-25J-001 NAHS AREA SUMP CONT. TAILING COLLECTION LAUNDER NO.1, 2311 3700-25J-001 PROCESS WATER 2760 3900-25J-016 C2-3510-TK-617 C2-3510-PP-161 C2-3510-ZM-209 C2-3510-PP-165 C2-3510-TK-618 C2-3510-TK-616 C2-3510-AG-616 C2-3510-ZM-208 SIZE: MOTOR: C2-3510-CN-604 NAHS JIB CRANE C2-3510-CH-604 SIZE: MOTOR: C2-3510-CH-604 NAHS HOIST SIZE: MATERIAL: CAPACITY: TRIM: C2-3510-TK-616 NAHS MIXING TANK SIZE: MATERIAL: MOTOR: C2-3510-AG-616 NAHS MIXING TANK AGITATOR SIZE: MATERIAL: MOTOR: C2-3510-PP-161 NAHS TRANSFER PUMP NO. 2 SIZE: MATERIAL: MOTOR: C2-3510-PP-160 NAHS TRANSFER PUMP NO. 1 SIZE: MATERIAL: MOTOR: C2-3510-ZM-209 NAHS INLINE MIXER SIZE: MATERIAL: CAPACITY: TRIM: C2-3510-TK-617 NAHS STORAGE TANK SIZE: MATERIAL: CAPACITY: TRIM: C2-3510-TK-618 NAHS DISTRIBUTION TANK SIZE: MATERIAL: MOTOR: C2-3510-PP-163 NAHS DISTRIBUTION PUMP NO. 1 SIZE: MATERIAL: MOTOR: C2-3510-PP-164 NAHS DISTRIBUTION PUMP NO. 2 C2-3510-ES-603 SIZE: C2-3510-ES-603 NAHS AREA SAFETY SHOWER SIZE: MATERIAL: MOTOR: C2-3510-PP-165 NAHS AREA SUMP PUMP SIZE: C2-3510-ZM-208 NAHS FEED CHUTE N2 N5 N8 N1 N4 N6 H, P2 L, P2 LL, P1 N1 N8 N3 N7 N9 N11 N4 H, P2 L, P2 LL, P1 AG KM LT ISSUED FOR CLIENT REVIEW 22-Dec-11 B RP ISSUED FOR COMBINED REVIEW 30-Jun-11 A 12/22/2011 K. MUNDY A. GUNSON A. REGNAULT L. TAMELIN 12/21/2011 8:24:56 PM WBS: 3510 B PIPING AND INSTRUMENTATION DIAGRAM MOLY PLANT 3500-25J-035 NAHS STORAGE AND PREPARATION T1 T1 T1 3510 03517 XA 3510 03517 ZS OP/CL FAULT 3510 03507 FQI 3510 03506 ZS 3510 03506 XA OP/CL V V V V 3510 03507 FI 3510-RS-1035-S1B-6"-N 3510-RS-1020-S1B-4"-N 3510-RS-1022-S1B-6"-H 3510-RS-1032-S1B-4"-N C2-3510-LA-001 3510-RS-1027-S1B-1"-N C2-3510-DC-603 SIZE: MOTOR: C2-3510-DC-603 NAHS SCRUBBER SYSTEM N9 N4 N3 N11 N10 N7 N6 N5 N6 N10 N2
  • 200.
    AG KM LT ISSUED FOR CLIENTREVIEW 22-Dec-11 B NOT USED A 12/22/2011 K. MUNDY A. GUNSON A. REGNAULT L. TAMELIN 12/21/2011 8:22:58 PM WBS: 3510 B PIPING AND INSTRUMENTATION DIAGRAM MOLY PLANT 3500-25J-036 CO2 GENERATION AND DISTRIBUTION D 4 F B A 3 2 1 5 6 8 E 7 C REV. APPROVED CHK. DES. REV. DATE REVISION DESCRIPTION CLIENT LEAD ENGINEER SCALE DRAWING NUMBER CHECK DESIGN CHECK DRAWING DESIGNED BY DRAWN BY APPROVAL DATE APPROVAL DATE APPROVED CHK. DES. REV. DATE REVISION DESCRIPTION REFERENCE DRAWING No. 1:100 0 1:200 5m 10m 0 5m 10m 15m 20m 1:500 10m 0 20m 30m 40m 50m 1:1000 0 100m 50m 1:20 0 0.5m 1m 1.5m 2m 0 1:25 0.5m 1m 1.5m 1:33 1/3 2.5m 2m 0 1m 2m 3m 0 1:50 1m 2m 3m 4m 5m CAD FILE NAME: P:0CAD000SPEM** MODEL UPDATED: DWG. FILE UPDATED: MANUAL CHANGES MADE: YES NO YES NO YES NO PROJECT MANAGER ENGINEERING MANAGER AREA PROJECTENGINEER REFERENCE DRAWINGS SAFETY SHARE: APPROVAL DATE CONTRACT NO. SAFETY SHARE : BA6CVA1.IGR NOTICE: THIS DRAWING HAS NOT BEEN PUBLISHED AND IS THE SOLE PROPERTY OF FLUOR AND IS LENT TO THE BORROWER FOR THEIR CONFIDENTIAL USE ONLY, AND IN CONSIDERATION OF THE LOAN OF THIS DRAWING, THE BORROWER PROMISES AND AGREES TO RETURN IT UPON REQUEST AND AGREES THAT IT WILL NOT BE REPRODUCED, COPIED LENT OR OTHERWISE DISPOSED OF DIRECTLY OR INDIRECTLY, NOR USED FOR ANY OTHER PURPOSE OTHER THAN WHICH IT IS FURNISHED. NONE Apr 2011 240K-C2- CO2 GAS MO CONDITIONING TANK, C2-3510-TK-601 3316 3500-25J-002 CO2 GAS MO 1ST CLEANER TANK, C2-3510-TK-603 3341 3500-25J-007 C2-3510-VS-080 SIZE: C2-3510-VS-080 LIQUID CO2 STORAGE TANK SIZE: C2-3510-ZM-527 CO2 VAPORIZER C2-3510-ZM-527 3510-PG-1001-CIA-2"-N 3510-PG-1002-CIA-2"-N VENDOR
  • 201.
    D 4 F B A 3 2 1 5 68 E 7 C REV. APPROVED CHK. DES. REV. DATE REVISION DESCRIPTION CLIENT LEAD ENGINEER SCALE DRAWING NUMBER CHECK DESIGN CHECK DRAWING DESIGNED BY DRAWN BY APPROVAL DATE APPROVAL DATE APPROVED CHK. DES. REV. DATE REVISION DESCRIPTION REFERENCE DRAWING No. 1:100 0 1:200 5m 10m 0 5m 10m 15m 20m 1:500 10m 0 20m 30m 40m 50m 1:1000 0 100m 50m 1:20 0 0.5m 1m 1.5m 2m 0 1:25 0.5m 1m 1.5m 1:33 1/3 2.5m 2m 0 1m 2m 3m 0 1:50 1m 2m 3m 4m 5m CAD FILE NAME: P:0CAD000SPEM** MODEL UPDATED: DWG. FILE UPDATED: MANUAL CHANGES MADE: YES NO YES NO YES NO PROJECT MANAGER ENGINEERING MANAGER AREA PROJECTENGINEER REFERENCE DRAWINGS SAFETY SHARE: APPROVAL DATE CONTRACT NO. SAFETY SHARE : BA6CVA1.IGR NOTICE: THIS DRAWING HAS NOT BEEN PUBLISHED AND IS THE SOLE PROPERTY OF FLUOR AND IS LENT TO THE BORROWER FOR THEIR CONFIDENTIAL USE ONLY, AND IN CONSIDERATION OF THE LOAN OF THIS DRAWING, THE BORROWER PROMISES AND AGREES TO RETURN IT UPON REQUEST AND AGREES THAT IT WILL NOT BE REPRODUCED, COPIED LENT OR OTHERWISE DISPOSED OF DIRECTLY OR INDIRECTLY, NOR USED FOR ANY OTHER PURPOSE OTHER THAN WHICH IT IS FURNISHED. NONE Apr 2011 240K-C2- AG KM LT ISSUED FOR CLIENT REVIEW 22-Dec-11 B NOT USED A 12/22/2011 K. MUNDY A. GUNSON A. REGNAULT L. TAMELIN 12/22/2011 3:05:22 PM WBS: 3510 B PIPING AND INSTRUMENTATION DIAGRAM MOLY PLANT 3500-25J-037 NAHS DISTRIBUTION C2-3510-ZM-639 C2-3510-ZM-638 3510 03712 FIC C2-3510-ZM-665 3510 03712 FE + C2-3510-ZM-637 C2-3510-ZM-636 3510-RS-1063-S1B-1"-N 3510-RS-1064-S1B-1"-N VENDOR 3510-RS-1065-S1B-1"-N ES 3510-RS-1066-S1B-1"-N 3510-RS-1067-S1B-1"-N 3510-RS-1054-S1B-1"-N H, P2 L, P2 3510-RS-1053-S1B-1"-N 3510-RS-1052-S1B-1"-N 3510-RS-1051-S1B-1"-N 3510-RS-1050-S1B-1"-N 3510 03711 FI 3510 03711 FIC 3510 03711 FE + VENDOR ES H, P2 L, P2 VENDOR ES 3510 03709 FI H, P2 L, P2 3510 03709 FIC 3510 03714 FI 3510 03709 FE + 3510 03714 FIC 3510 03714 FE + VENDOR ES H, P2 L, P2 3510 03713 FI 3510 03713 FIC 3510 03713 FE + VENDOR ES H, P2 L, P2 3510 03712 FI 3510 03708 FIC C2-3510-ZM-635 3510 03708 FE + C2-3510-ZM-634 C2-3510-ZM-633 3510-RS-1060-S1B-1"-N 3510-RS-1061-S1B-1"-N VENDOR 3510-RS-1062-S1B-1"-N ES H, P2 L, P2 3510-RS-1049-S1B-1"-N 3510-RS-1048-S1B-1"-N 3510-RS-1047-S1B-1"-N 3510 03707 FI 3510 03707 FIC 3510 03707 FE + VENDOR ES H, P2 L, P2 3510 03706 FI 3510 03706 FIC 3510 03706 FE + VENDOR ES H, P2 L, P2 3510 03708 FI S S S S S S SIZE: C2-3510-ZM-639 NAHS REAGENT INJECTOR NO. 13 SIZE: C2-3510-ZM-638 NAHS REAGENT INJECTOR NO. 12 SIZE: C2-3510-ZM-665 NAHS REAGENT INJECTOR NO. 3 SIZE: C2-3510-ZM-637 NAHS REAGENT INJECTOR NO. 11 SIZE: C2-3510-ZM-636 NAHS REAGENT INJECTOR NO. 10 SIZE: C2-3510-ZM-635 NAHS REAGENT INJECTOR NO. 9 SIZE: C2-3510-ZM-634 NAHS REAGENT INJECTOR NO. 8 SIZE: C2-3510-ZM-633 NAHS REAGENT INJECTOR NO. 7 S S C2-3510-ZM-632 C2-3510-ZM-664 3510 03703 FIC C2-3510-ZM-631 3510 03703 FE + C2-3510-ZM-630 C2-3510-ZM-663 3510-RS-1055-S1B-1"-N 3510-RS-1056-S1B-1"-N VENDOR 3510-RS-1057-S1B-1"-N ES 3510-RS-1058-S1B-1"-N 3510-RS-1059-S1B-1"-N 3510-RS-1046-S1B-1"-N H, P2 L, P2 3510-RS-1045-S1B-1"-N 3510-RS-1044-S1B-1"-N 3510-RS-1043-S1B-1"-N 3510-RS-1042-S1B-1"-N 3510 03702 FI 3510 03702 FIC 3510 03702 FE + VENDOR ES H, P2 L, P2 VENDOR ES 3510 03701 FI H, P2 L, P2 3510 03701 FIC 3510 03705 FI 3510 03701 FE + 3510 03705 FIC 3510 03705 FE + VENDOR ES H, P2 L, P2 3510 03704 FI 3510 03704 FIC 3510 03704 FE + VENDOR ES H, P2 L, P2 3510 03703 FI S S S S S SIZE: C2-3510-ZM-632 NAHS REAGENT INJECTOR NO. 6 SIZE: C2-3510-ZM-664 NAHS REAGENT INJECTOR NO. 2 SIZE: C2-3510-ZM-631 NAHS REAGENT INJECTOR NO. 5 SIZE: C2-3510-ZM-630 NAHS REAGENT INJECTOR NO. 4 SIZE: C2-3510-ZM-663 NAHS REAGENT INJECTOR NO. 1 3510-RS-1008-S1B-1-1/2"-N 3510-RS-1007-S1B-1-1/2"-N NAHS SOLUTION NAHS DISTRIBUTION PUMPS, C2-3510-PP-163/164 1840 3500-25J-035 MO 5TH CLEANER FEED PUMPBOX, C2-3510-BX-612 3569 3500-25J-022 MO 4TH CLEANER FEED PUMPBOX, C2-3510-BX-611 3564 3500-25J-021 MO 3RD CLEANER FEED PUMPBOX, C2-3510-BX-610 2225 3500-25J-017 MO 2ND CLEANER FLOTATION CELL NO.5, C2-3510-CF-735 3578 3500-25J-016 MO 2ND CLEANER FEED PUMPBOX, C2-3510-BX-609 3575 3500-25J-016 MO CLEANER SCAV. FLOT. CELL NO.3, C2-3510-CF-723 3580 3500-25J-012 MO CLEANER SCAV. FLOT. CELL NO.1, C2-3510-CF-721 3579 3500-25J-012 MO 1ST CLEANER FLOT. CELL NO. 5, C2-3510-CF-705 3566 3500-25J-011 MO. 1ST CLEANER COND. TANK, C2-3510-TK-603 2487 3500-25J-007 MO ROUGHER SCAN. FLOT. CELL NO.6, C2-3510-CF-706 3562 3500-25J-005 MO. CONDITIONING TANK, C2-3510-TK-601 3554 3500-25J-002 3510-RS-1026-S1B-2"-N MO ROUGHER FLOT. CELL NO.2, C2-3510-CF-702 3552 3500-25J-003 MO CLEANER SCAV. FLOT. CELL NO.5, C2-3510-CF-725 3584 3500-25J-013
  • 202.
    D 4 F B A 3 2 1 5 68 E 7 C REV. APPROVED CHK. DES. REV. DATE REVISION DESCRIPTION CLIENT LEAD ENGINEER SCALE DRAWING NUMBER CHECK DESIGN CHECK DRAWING DESIGNED BY DRAWN BY APPROVAL DATE APPROVAL DATE APPROVED CHK. DES. REV. DATE REVISION DESCRIPTION REFERENCE DRAWING No. 1:100 0 1:200 5m 10m 0 5m 10m 15m 20m 1:500 10m 0 20m 30m 40m 50m 1:1000 0 100m 50m 1:20 0 0.5m 1m 1.5m 2m 0 1:25 0.5m 1m 1.5m 1:33 1/3 2.5m 2m 0 1m 2m 3m 0 1:50 1m 2m 3m 4m 5m CAD FILE NAME: P:0CAD000SPEM** MODEL UPDATED: DWG. FILE UPDATED: MANUAL CHANGES MADE: YES NO YES NO YES NO PROJECT MANAGER ENGINEERING MANAGER AREA PROJECTENGINEER REFERENCE DRAWINGS SAFETY SHARE: APPROVAL DATE CONTRACT NO. SAFETY SHARE : BA6CVA1.IGR NOTICE: THIS DRAWING HAS NOT BEEN PUBLISHED AND IS THE SOLE PROPERTY OF FLUOR AND IS LENT TO THE BORROWER FOR THEIR CONFIDENTIAL USE ONLY, AND IN CONSIDERATION OF THE LOAN OF THIS DRAWING, THE BORROWER PROMISES AND AGREES TO RETURN IT UPON REQUEST AND AGREES THAT IT WILL NOT BE REPRODUCED, COPIED LENT OR OTHERWISE DISPOSED OF DIRECTLY OR INDIRECTLY, NOR USED FOR ANY OTHER PURPOSE OTHER THAN WHICH IT IS FURNISHED. NONE Apr 2011 240K-C2- AG KM LT ISSUED FOR CLIENT REVIEW 22-Dec-11 B NOT USED A 12/22/2011 K. MUNDY A. GUNSON A. REGNAULT L. TAMELIN 12/22/2011 3:06:20 PM WBS: 3510 B PIPING AND INSTRUMENTATION DIAGRAM MOLY PLANT 3500-25J-041 N2 GENERATION AND DISTRIBUTION NITROGEN MO 2ND CLEANER FLOTATION CELL NO. 5, C2-3510-CF-735 2834 3500-25J-016 NITROGEN MO CLEANER SCAVENGER FLOTATION CELL NO. 5, 2831 3500-25J-013 NITROGEN MO 1ST CLEANER FLOTATION CELL NO. 5, C2-3510-CF-715 2837 3500-25J-011 NITROGEN MO ROUGHER FLOTATION CELLS NO. 1 & NO. 2, 1864 3500-25J-003 NITROGEN MO ROUGHER FLOTATION CELLS NO. 4, C2-3510-CF-704 1849 3500-25J-004 NITROGEN MO ROUGHER SCAVENGER FLOTATION CELL NO. 6, 1869 3500-25J-005 C2-3510-CF-701/702 C2-3510-CF-706 C2-3510-CF-725 NITROGEN MO 2ND CLEANER FLOTATION CELLS NO. 1 & NO. 3, 2843 3500-25J-015 NITROGEN MO CLEANER SCAVENGER FLOTATION CELLS NO.2 & 2835 3500-25J-012 C2-3510-VS-081 C2-3510-ZM-528 SIZE: MATERIAL: CAPACITY: TRIM: C2-3510-VS-081 LIQUID NITROGEN TANK SIZE: C2-3510-ZM-528 NITROGEN VAPOURIZER C2-3510-CF-733 NO.3, C2-3510-CF-723 NITROGEN MO 1ST CLEANER FLOTATION CELL NO. 1, C2-3510-CF-713 2848 3500-25J-007 3510-N2G-1013-C1D-1-1/2"-N 3510-N2G-1012-C1D-1-1/2"-N 3510-N2G-1010-C1D-1-1/2"-N 3510-N2G-1009-C1D-1-1/2"-N 3510-N2G-1007-C1D-1-1/2"-N 3510-N2G-1006-C1D-1-1/2"-N 3510-N2G-1004-C1D-2"-N 3510-N2G-1003-C1D-1-1/2"-N 3510-N2G-1002-C1D-2"-N 3510-N2G-1001-C1D-3"-N NITROGEN MO 2ND CLEANER FLOTATION CELL NO. 1, C2-3510-CF-731 2844 3500-25J-015 3510-N2G-1011-C1D-1-1/2"-N NITROGEN MO.CLEANER SCAV.FLOT.CELL NO. 2, 2836 3500-25J-012 NITROGEN NITROGEN BLANKET MANIFOLD 2274 3500-25J-031 NITROGEN MO. 1 ST CLEANER, C2-3510-CF-711 2850 3500-25J-007 3510-N2G-1005-C1D-1-1/2"-N 3510-N2G-1008-C1D-1-1/2"-N 3510-N2G-1014-C1D-1/4"-N C2-3510-CF-722 VENDOR
  • 203.
    T3 T3 3610 00123 XA 3610 00119 ZS 3610 00109 ZS OP/CL 3610 00123 ZS 3610 00106 ZS 3610 00107 ZS 3610 00116 ZS 3610 00108 ZS 3610 00118 ZS 3610 00117 ZS 3610 00112 ZS OP/CL 3610 00112 XA 3610 00117 XA 3610 00108 XA 3610 00118 XA 3610 00107 XA 3610 00106 XA 3610 00109 XA 3610 00119 XA 3610 00116 XA 3610 00184 XA / 3610 00101 FIC 3610 00111 OI HH,P1 H, P2 3610 00110 ZI 3610 00101 FIT 3610 00183 II 3610 00114 FI 3610 00183 HS M 3610 00113 PI 3610 00105 PIT 3610 00101 WQI 3610 00101 PIC 3610 00184 HS 3610 00101 DX 3610 00101 FY 3610 00102 LI H, P2 3610 00115 PIT 3610 00181 HS J/SP 3610 00181 II 3610 00181 XA 3610 00105 PI 3610 00183 XA 3610 00101 DIC 3610 00101 DIT MIN 3610 00102 LIT 3610 00101 PT 3610 00182 HS J/SP 3610 00182 XA 3610 00182 II M 3610 00122 ZS 3610 00122 XA 3610 00101 DE 3610 00102 LE 3610 00184 II 3610 00104 FI 3610 00115 PI M 3610 00104 FIT 3610 00114 FIT TO FLOOR TO FLOOR SUMP GLAND SEAL WATER 2963 3900-25J-023 CONC. CLARIFIER O/F CONC. CLARIFIER O/F PUMPS, C2-3610-PP-008/009 2549 3600-25J-004 CU-MO THICKENER FEED CU-MO CONC. THICKENER FEED BOX C2-3510-BX-003 3311 3500-25J-001 PROCESS WATER 2278 3900-25J-016 COLUMN CONCENTRATE COLUMN CONC. TRANSFER PUMPS, C2-3430-PP-514/515 2213 3400-25J-041 CONC. LOADING SUMP CONC. WASH LOADING STATION SUMP PUMP, 2304 3600-25J-017 CU CONC. THICKENER O/F CU CONC. THICKENER O/F TANK, C2-3610-TK-005 1080 3600-25J-002 MO ROUGHER TAILING MO ROUGHER TAILING SAMPLER, C3-3510-SA-613 2248 3500-25J-025 CU FILTER AREA SUMP CU CONC. FILTER AREA SPILLAGE PUMP, 2164 3600-25J-006 PROCESS WATER 2281 3900-25J-016 CU CONC. AREA SUMP CU CONC. THICKENER AREA SPILLAGE PUMP, 2285 3600-25J-002 CONC. FLOCCULANT CONCENTRATE FLOCCULANT METERIG PUMPS 2279 3900-25J-007 CU CONC. THICKENER U/F SAFETY SCREEN FEED BOX, C2-3610-BX-041 2221 3600-25J-005 MIN AFD VENDOR SUPPLY MIN MIN SLOPE C1A LIFT POSITION MIN. L, P2 MASS FLOW MIN L, P2 LL,P1 C2-3610-PP-054 J/SP L, P2 LL,P1 TO FLOOR MIN AFD SELECT NOTE 1 NOTE 1 NOTE 1 C2-3610-PP-035 R1A SLOPE C1A TORQUE TO FLOOR NOTES: 1. *" ANSI BOLTING X 6" I.D. AT BOTH PUMP FLANGES. R1A MIN MIN L, P2 J/SP MIN FAULT FAULT OP/CL OP/CL FAULT FAULT OP/CL OP/CL OP/CL OP/CL OP/CL OP/CL OP/CL FI FI SIZE: MATERIAL: MOTOR: C2-3610-PP-045 CU CONCENTRATE THICKENER UNDERFLOW PUMP NO.1 3610 00123 XV + FI ES 3610 00117 XV + ES 3510-SL-1558-R1A-8"-N 1-1/2"x1" C2-3610-BX-001 3610-SL-1584-R1A-6"-N V 3610 00114 FE + 3610 00116 XV + 6"x6" 3610-WG-1035-C1A-1"-N 3610 00101 FE + FI ES C2-3610-TK-001 4"x1-1/2" 3610-SL-1587-R1A-6"-N 3610-WR-1913-C1A-4"-N FI 3610 00107 XV + SIZE: MATERIAL: CAPACITY: TRIM: C2-3610-BX-001 CU CONCENTRATE THICKENER FEED BOX 3610-RE-1020-C1A-2"-N 3610 00104 FE + FI 3610-SL-1589-R1A-6"-N FI 3610 00118 XV + SIZE: MATERIAL: MOTOR: C2-3610-PP-046 CU CONCENTRATE THICKENER UNDERFLOW PUMP NO.2 FI SIZE:35 m DIA C2-3610-TK-001 CU CONCENTRATE THICKENER TANK 3610 00106 XV + 1"x1/2" FI ES 1-1/2"x1" 1-1/2"x1" ES 4"x2" 3610-SL-1585-R1A-6"-N 3610-WR-1293-C1A-4"-N 3610-WG-1035-C1A-2"-N 3610-SL-1586-R1A-8"-N 3610 00108 XV + 8"x6" 3610-SL-1579-C1B-4"-N 6"x6" 3610-WG-1074-C1A-1"-N C2-3610-PP-046 3610 00112 XV + 10"x6" 3610-SL-1583-R1A-12"-N 10"x6" 3430-SL-1308-R1A-12"-N V 2"x1" 3610 00119 XV + 1"x1/2" 6"x6" C2-3610-PP-045 FI 3610-WR-1894-C1A-4"-N 3610-WR-1292-C1A-4"-N 3610 00122 XV + 3610-WR-1895-C1A-4"-N 3610-WR-1896-C1A-8"-N 3610 00109 XV + AG KM LT ISSUED FOR CLIENT REVIEW 22-Dec-11 B RP ISSUED FOR COMBINED REVIEW 30-Jun-11 A 12/22/2011 K. MUNDY A. GUNSON A. REGNAULT L. TAMELIN 12/22/2011 1:54:35 PM WBS: 3610 B PIPING AND INSTRUMENTATION DIAGRAM CU CONCENTRATE THICKENING 3600-25J-001 CU CONCENTRATE THICKENER 1-1/2"x1" FI D 4 F B A 3 2 1 5 6 8 E 7 C REV. APPROVED CHK. DES. REV. DATE REVISION DESCRIPTION CLIENT LEAD ENGINEER SCALE DRAWING NUMBER CHECK DESIGN CHECK DRAWING DESIGNED BY DRAWN BY APPROVAL DATE APPROVAL DATE APPROVED CHK. DES. REV. DATE REVISION DESCRIPTION REFERENCE DRAWING No. 1:100 0 1:200 5m 10m 0 5m 10m 15m 20m 1:500 10m 0 20m 30m 40m 50m 1:1000 0 100m 50m 1:20 0 0.5m 1m 1.5m 2m 0 1:25 0.5m 1m 1.5m 1:33 1/3 2.5m 2m 0 1m 2m 3m 0 1:50 1m 2m 3m 4m 5m CAD FILE NAME: P:0CAD000SPEM** MODEL UPDATED: DWG. FILE UPDATED: MANUAL CHANGES MADE: YES NO YES NO YES NO PROJECT MANAGER ENGINEERING MANAGER AREA PROJECTENGINEER REFERENCE DRAWINGS SAFETY SHARE: APPROVAL DATE CONTRACT NO. SAFETY SHARE : BA6CVA1.IGR NOTICE: THIS DRAWING HAS NOT BEEN PUBLISHED AND IS THE SOLE PROPERTY OF FLUOR AND IS LENT TO THE BORROWER FOR THEIR CONFIDENTIAL USE ONLY, AND IN CONSIDERATION OF THE LOAN OF THIS DRAWING, THE BORROWER PROMISES AND AGREES TO RETURN IT UPON REQUEST AND AGREES THAT IT WILL NOT BE REPRODUCED, COPIED LENT OR OTHERWISE DISPOSED OF DIRECTLY OR INDIRECTLY, NOR USED FOR ANY OTHER PURPOSE OTHER THAN WHICH IT IS FURNISHED. NONE Apr 2011 240K-C2- 3610-SL-1588-R1A-6"-N 3610-SL-1582-C1B-4"-N 3610 00101 HY V MISMATCH MISMATCH MISMATCH MISMATCH MISMATCH MISMATCH MISMATCH 3610-SL-1582-C1A-12"-N MISMATCH MISMATCH 3510-SL-1820-R1A-4"-N 3620-SL-1634-C1B-4"-N 3620-SL-1811-R1B-16"-N MISMATCH CU CONCENTRATE FILTER CONC. FILTER FEED PUMPS, C2-3620-PP-049/050/051/066 3736 3600-25J-008 C2-3630-PP-037 CONTENTS CONTENTS CONTENTS CONC CLARIFIER U/F CLARIFIER UNDERFLOW PUMPS, C2-3610-PP-016/017 4134 3600-25J-004 C2-3610-TM-001A SIZE: MOTOR: C2-3610-TM-001A CU CONCENTRATE THICKENER MECHANISM 3610-SL- -C1B-2"-N FEED 3610 00124 XA MISMATCH 3610 00124 ZS OP/CL FI V1 3610 00124 VX + 3610 00125 XV + V1 3610 00125 XA MISMATCH 3610 00125 ZS OP/CL 3620-SL-1812-R1B-16"-N CU CONC FILTER FEED SAFTEY SCREEN FEED BOX, C2-3620-BX-041 4147 3600-25J-005 BYPASS
  • 204.
    T3 T3 3610 00283 XA 3610 00283 II 3610 00204 LI 3610 00283 HS J/SP 3610 00204 LIT 3610 00203 PI 3610 00282 XA 3610 00201 LT 3610 00201 A LI 3610 00212 FIT 3610 00213 PI 3610 00202 FI 3610 00213 PIT 3610 00282 HS J/SP 3610 00202 FIT 3610 00282 II 3610 00203 PIT M 3610 00281 II 3610 00212 FI M 3610 00281 XA 3610 00201 LE 3610 00204 LE 3610 00201 LIC 3610 00281 HS J/SP TO FLOOR SUMP TO FLOOR SUMP COMBINED THICKENERO/F CONCENTRATE CLARIFIER FEED BOX, C2-3610-BX-006 2842 3600-25J-003 CU THICKENER O/F CU CONCENTRATE THICKENER, C2-3610-TK-001 1080 3600-25J-001 CU-MO THICKENER O/F CU-MO CONCENTRATE THICKENER, C2-3500-TK-002 1081 3500-25J-001 CU CONC. AREA SUMP CU CONCENTRATE THICKENER FEED BOX, 2285 3600-25J-001 SLOPE L, P2 L, P2 LL, P1 SLOPE L, P2 LL, P1 HH, P1 H, P2 L, P2 LL, P1 AFD AFD L, P2 FAULT FAULT FAULT C2-3610-BX-001 H, P2 L, P2 LL, P1 2"x1" 12"x10" C2-3610-PP-048 4"x3" 2" 3610 00201 LV + 12"x10" C2-3610-TK-005 3610 00212 FE + 2" 4"x3" 2" 3610 00202 FE + C2-3610-PP-047 3610-SL-1582-C1B-4"-N C2-3610-PP-054 SIZE: MATERIAL: CAPACITY: TRIM: C2-3610-TK-005 CU CONCENTRATE THICKENER OVERFLOW TANK 3610-WR-1896-C1A-8"-N 3610-WR-1906-C1A-10"-N 3610-WR-1289-C1A-4"-N 3610-WR-1900-C1A-12"-N 3510-WR-1799-C1A-14"-N ES 2" 2"x1" AG KM LT ISSUED FOR CLIENT REVIEW 22-Dec-11 B RP ISSUED FOR COMBINED REVIEW 30-Jun-11 A 12/22/2011 K. MUNDY A. GUNSON A. REGNAULT L. TAMELIN 12/22/2011 1:58:19 PM WBS: 3610 B PIPING AND INSTRUMENTATION DIAGRAM CU CONCENTRATE THICKENING 3600-25J-002 CONC. THICKENER O/F PUMPING ES 3610-WG-1100-C1A-2"-N SIZE: MATERIAL: MOTOR: C2-3610-PP-047 CU CONCENTRATE THICKENER OVERFLOW PUMP NO.1 3610-WG-1101-C1A-1"-N 3610-WR-1902-C1A-10"-N 3610-WR-1901-C1A-10"-N 3610-WR-1899-C1A-12"-N ES SIZE: MATERIAL: MOTOR: C2-3610-PP-048 CU CONCENTRATE THICKENER OVERFLOW PUMP NO.2 SIZE: MATERIAL: MOTOR: C2-3610-PP-054 CU CONCENTRATE THICKENER AREA SUMP PUMP D 4 F B A 3 2 1 5 6 8 E 7 C REV. APPROVED CHK. DES. REV. DATE REVISION DESCRIPTION CLIENT LEAD ENGINEER SCALE DRAWING NUMBER CHECK DESIGN CHECK DRAWING DESIGNED BY DRAWN BY APPROVAL DATE APPROVAL DATE APPROVED CHK. DES. REV. DATE REVISION DESCRIPTION REFERENCE DRAWING No. 1:100 0 1:200 5m 10m 0 5m 10m 15m 20m 1:500 10m 0 20m 30m 40m 50m 1:1000 0 100m 50m 1:20 0 0.5m 1m 1.5m 2m 0 1:25 0.5m 1m 1.5m 1:33 1/3 2.5m 2m 0 1m 2m 3m 0 1:50 1m 2m 3m 4m 5m CAD FILE NAME: P:0CAD000SPEM** MODEL UPDATED: DWG. FILE UPDATED: MANUAL CHANGES MADE: YES NO YES NO YES NO PROJECT MANAGER ENGINEERING MANAGER AREA PROJECTENGINEER REFERENCE DRAWINGS SAFETY SHARE: APPROVAL DATE CONTRACT NO. SAFETY SHARE : BA6CVA1.IGR NOTICE: THIS DRAWING HAS NOT BEEN PUBLISHED AND IS THE SOLE PROPERTY OF FLUOR AND IS LENT TO THE BORROWER FOR THEIR CONFIDENTIAL USE ONLY, AND IN CONSIDERATION OF THE LOAN OF THIS DRAWING, THE BORROWER PROMISES AND AGREES TO RETURN IT UPON REQUEST AND AGREES THAT IT WILL NOT BE REPRODUCED, COPIED LENT OR OTHERWISE DISPOSED OF DIRECTLY OR INDIRECTLY, NOR USED FOR ANY OTHER PURPOSE OTHER THAN WHICH IT IS FURNISHED. NONE Apr 2 240K-C2- GLAND SEAL WATER 3317 3900-25J-023 T8 FC PROCESS WATER 3729 3900-25J-016 CONTENTS PROCESS WATER SAFTEY SCREEN FEED BOX, C2-3620-BX-041 4137 3600-25J-005 3620-WR- -C1A-2"-N
  • 205.
    T3 T3 3610 00382 HS J/SP 3610 00381 HS J/SP 3610 00382 II 3610 00382 XA 3610 00381 II 3610 00381 XA 3610 00322 ZS 3610 00322 XA 3610 00324 ZS OP/CL 3610 00324 XA 3610 00309 ZS 3610 00319 ZS OP/CL 3610 00306 ZS OP/CL 3610 00307 ZS 3610 00319 XA 3610 00307 XA 3610 00306 XA 3610 00309 XA 3610 00317 ZS 3610 00312 ZS OP/CL 3610 00308 ZS 3610 00316 ZS 3610 00318 ZS 3610 00316 XA 3610 00318 XA 3610 00308 XA 3610 00317 XA 3610 00312 XA 3610 00384 XA M 3610 00313 PI 3610 00383 HS M 3610 00301 FIT M MIN 3610 00315 PI 3610 00304 FI 3610 00384 II 3610 00301 DIC 3610 00383 XA 3610 00305 PI 3610 00314 FIT 3610 00304 FIT 3610 00302 LE 3610 00301 HY 3610 00301 DE / 3610 00301 PT 3610 00302 LIT 3610 00301 DIT 3610 00302 LI H, P2 3610 00315 PIT 3610 00301 FY 3610 00301 DX 3610 00301 PIC 3610 00384 HS 3610 00301 WQI 3610 00305 PIT 3610 00314 FI 3610 00383 II 3610 00310 ZI 3610 00311 OI HH,P2 H, P1 3610 00301 FIC 3610 00327 XA 3610 00327 ZS 3610 00326 ZS 3610 00326 XA TO FLOOR TO FLOOR SUMP CU FILTRATE CU CONC. FILTER NO.2 C2-3620-FL-002 3351 3600-25J-012 CU FILTRATE AIR RELEASE TANK FILTER NO.2, C2-3620-TK-045 3352 3600-25J-012 CU CONC. THICKENER O/F COMBINED. THICKENER O/F PUMPS, C2-3610-PP-047/048 2842 3600-25J-002 GLAND SEAL WATER 2964 3900-25J-023 CU FILTRATE CU CONC. FILTER NO.1 C2-3620-FL-001 3347 3600-25J-007 CU FILTRATE AIR RELEASE TANK FILTER NO.1, C2-3620-TK-044 3348 3600-25J-007 CONC. CLARIFIER O/F CONC. CLARIFIER O/F PUMPS, C2-3610-PP-008/009 3318 3600-25J-004 CU FILTRATE AIR RELEASE TANK FILTER NO.3, C2-3620-TK-053 3355 3600-25J-013 CU FILTRATE CU CONC. FILTER NO.3 C2-3620-FL-003 3354 3600-25J-013 CONC. CLARIFIER O/F CONC. CLARIFIER O/F TANK, C2-3610-TK-095 2591 3600-25J-004 CU MO THICKENER FEED CU MO CONC. THICKENER BYPASS C2-3510-BX-003 2592 3500-25J-001 CONC. FLOCCULANT CONCENTRATE FLOCCULANT METERING PUMPS 2596 3900-25J-007 CONC. CLARIFIER U/F CLARIFIER UNDERFLOW PUMP NO.3, C2-3610-PP-016 4091 3600-25J-004 CONC. CLARIFIER U/F CLARIFIER UNDERFLOW PUMP NO.4, C2-3610-PP-017 3605 3600-25J-004 FAULT FAULT OP/CL OP/CL OP/CL FAULT FAULT OP/CL OP/CL OP/CL OP/CL L, P2 AFD SELECT SLOPE MIN L, P2 MIN. R1A MIN LIFT POSITION MIN AFD MASS FLOW J/SP C1A C1A TO FLOOR NOTES: 1. *" ANSI BOLTING X 6" I.D. AT BOTH PUMP FLANGES. MIN TORQUE VENDOR SUPPLY NOTE 1 NOTE 1 TO FLOOR L, P2 LL,P1 MIN R1A MIN J/SP L, P2 LL,P1 SLOPE NOTE 1 C2-3610-PP-016/017 OP/CL OP/CL V 3610 00327 XV + FI 3610 00309 XV + 3610-WR-1903-C1A-4"-N 1-1/2"x1" 1-1/2"x1" 3610-WG-1036-C1A-2"-N 3610-WG-1036-C1A-1"-N 3610-SL-1605-R1A-6"-N 1"x1/2" 3620-SL-1591-R1A-10"-N 3610-SL-1599-R1A-14"-N 3610 00306 XV + 3610 00319 XV + FI 3610 00322 XV + C2-3610-BX-006 3610-WG-1075-C1A-1"-N V 3610 00326 XV + FI AG KM LT ISSUED FOR CLIENT REVIEW 22-Dec-11 B RP ISSUED FOR COMBINED REVIEW 30-Jun-11 A 12/22/2011 K. MUNDY A.GUNSON A. REGNAULT L.TAMELIN 12/22/2011 2:00:00 PM WBS: 3610 B PIPING AND INSTRUMENTATION DIAGRAM CU CONCENTRATE THICKENING 3600-25J-003 CONCENTRATE CLARIFIER 3610-WR-1904-C1A-4"-N ES 3610 00318 XV + 3610-SL-1598-R1A-12"-N 3610 00301 FE + FI FI 14"x8" FI SIZE: MATERIAL: MOTOR: C2-3610-PP-006 CLARIFIER UNDERFLOW PUMP NO. 1 SIZE: 35 m D MATERIAL: MOTOR: C2-3610-TM-006 CONCENTRATE CLARIFIER MECHANISM 2"x1" ES 3610-WR-1294-C1A-4"-N C2-3610-PP-007 C2-3610-TK-006 C2-3610-PP-006 4"x1-1/2" 1-1/2"x1" 10"x14" 3610-WR-1296-C1A-4"-N 3610 00312 XV + 3610 00314 FE + 3610-WR-1905-C1A-16"-N 1-1/2"x1" 3610 00304 FE + SIZE: MATERIAL: MOTOR: C2-3610-PP-007 CLARIFIER UNDERFLOW PUMP NO. 2 3610 00317 XV + 3610 00308 XV + SIZE:35 m D C2-3610-TK-006 CONCENTRATE CLARIFIER TANK 3610-SL-1602-R1A-8"-N FI ES 3610 00316 XV + FI 3620-SL-1592-R1A-10"-N SIZE: MATERIAL: CAPACITY: TRIM:C1B C2-3610-BX-006 CONCENTRATE CLARIFIER FEED BOX 14"x8" 1"x1/2" V FI ES 3620-SL-1593-R1A-10"-N 10"x14" 3610-SL-1601-R1A-8"-N FI ES C2-3610-TM-006 3610 00307 XV + FI FI 3610-SL-1600-R1A-14"-N 3910-RE-1018-C1A-2"-N FI 3610 00324 XV + C2-3610-LA-009 3610-SL-1603-R1A-8"-N 3610-WR-1897-C1A-4"-N SIZE: C2-3610-LA-009 CONCENTRATE CLARIFIER FEED LAUNDER D 4 F B A 3 2 1 5 6 8 E 7 C REV. APPROVED CHK. DES. REV. DATE REVISION DESCRIPTION CLIENT LEAD ENGINEER SCALE DRAWING NUMBER CHECK DESIGN CHECK DRAWING DESIGNED BY DRAWN BY APPROVAL DATE APPROVAL DATE APPROVED CHK. DES. REV. DATE REVISION DESCRIPTION REFERENCE DRAWING No. 1:100 0 1:200 5m 10m 0 5m 10m 15m 20m 1:500 10m 0 20m 30m 40m 50m 1:1000 0 100m 50m 1:20 0 0.5m 1m 1.5m 2m 0 1:25 0.5m 1m 1.5m 1:33 1/3 2.5m 2m 0 1m 2m 3m 0 1:50 1m 2m 3m 4m 5m CAD FILE NAME: P:0CAD000SPEM** MODEL UPDATED: DWG. FILE UPDATED: MANUAL CHANGES MADE: YES NO YES NO YES NO PROJECT MANAGER ENGINEERING MANAGER AREA PROJECTENGINEER REFERENCE DRAWINGS SAFETY SHARE: APPROVAL DATE CONTRACT NO. SAFETY SHARE : BA6CVA1.IGR NOTICE: THIS DRAWING HAS NOT BEEN PUBLISHED AND IS THE SOLE PROPERTY OF FLUOR AND IS LENT TO THE BORROWER FOR THEIR CONFIDENTIAL USE ONLY, AND IN CONSIDERATION OF THE LOAN OF THIS DRAWING, THE BORROWER PROMISES AND AGREES TO RETURN IT UPON REQUEST AND AGREES THAT IT WILL NOT BE REPRODUCED, COPIED LENT OR OTHERWISE DISPOSED OF DIRECTLY OR INDIRECTLY, NOR USED FOR ANY OTHER PURPOSE OTHER THAN WHICH IT IS FURNISHED. NONE Apr 2011 240K-C2- MISMATCH MISMATCH MISMATCH MISMATCH MISMATCH MISMATCH MISMATCH MISMATCH MISMATCH MISMATCH MISMATCH MISMATCH MISMATCH 3610-SL-1814-R1A-3"-N 3610-SL-1815-R1A-3"-N MUFFLER DISCHARGE CU CONC. FILTER NO.3 MUFFLER C2-3620-ZM-076 3356 3600-25J-013 MUFFLER DISCHARGE CU CONC. FILTER NO.2 MUFFLER C2-3620-ZM-075 3353 3600-25J-012 MUFFLER DISCHARGE CU CONC. FILTER NO.1 MUFFLER C2-3620-ZM-074 3349 3600-25J-007 3610-WR-1906-C1A-10"-N 3510-SL-1590-R1A-30"-N 3610-SL-1623-R1A-8"-N 3620-SL-1636-R1A-8"-N 3620-SL-1648-R1A-8"-N 3620-SL-1818-R1A-2"-N 3620-SL-1596-C1B-10"-N 3620-SL-1595-C1B-10"-N 3620-SL-1594-C1B-10"-N CONC. CLARIFIER U/F CONC. CLARIFIER U/F PUMPS NO.3 & NO.4, 3733 3600-25J-004 PROCESS WATER 2598 3900-25J-016 3610-RE-1023-C1A-2"-N PROCESS WATER 2922 3900-25J-016 CONC. CLARIFIER U/F SAFETY SCREEN C2-3620-BX-041 4138 3600-25J-005
  • 206.
    T3 T3 3610 00405 PIT 3610 00481 XA 3610 00401 A LI 3610 00481 II M 3610 00401 LIC 3610 00401 LT 3610 00401 LE 3610 00414 FI 3610 00415 PI 3610 00414 FIT 3610 00482 HS J/SP 3610 00415 PIT 3610 00406 PIC H,P2 3610 00482 XA 3610 00482 II 3610 00406 PIT M 3610 00404 FI 3610 00405 PI 3610 00404 FIT 3610 00481 HS J/SP TO FLOOR SUMP TO FLOOR SUMP CONC. CLARIFIER O/F CONCENTRATE CLARIFIER, C2-3610-TK-006 3318 3600-25J-003 PROCESS WATER 2560 3900-25J-016 CONC. CLARIFIER O/F MO INTERMEDIATE THICKENER, C2-3510-TK-602 2547 3500-25J-014 CONC. CLARIFIER O/F CU-MO THICKENER, C2-3510-TK-002 2548 3500-25J-001 CONC. CLARIFIER O/F CU CONC. THICKENER, C2-3610-TK-001 2549 3600-25J-001 CONC. CLARIFIER O/F TAILING COLLECTION LAUNDER NO. 1, 2550 3700-25J-001 CONC. CLARIFIER O/F CU FILTER FEED MANIFOLD FLUSH TANK, C2-3610-TK-043 2147 3600-25J-014 SLOPE AFD L, P2 L, P2 LL, P1 HH, P1 H, P2 L, P2 LL, P1 L, P2 L, P2 LL, P1 AFD FAULT FAULT C2-3610-TK-095 2" C2-3610-PP-009 2" 4"x3" 2"x1" C2-3610-PP-008 2" 3610 00401 LV + 3610 00404 FE + 16"x10" 3610 00414 FE + 4"x3" 2" 6"x1" 3610 00406 PV + 16"x10" AG KM LT ISSUED FOR CLIENT REVIEW 22-Dec-11 B RP ISSUED FOR COMBINED REVIEW 30-Jun-11 A 12/22/2011 K. MUNDY A.GUNSON A. REGNAULT L.TAMELIN 12/22/2011 2:03:23 PM WBS: 3610 B PIPING AND INSTRUMENTATION DIAGRAM CU CONCENTRATE THICKENING 3600-25J-004 CONC. CLARIFIER O/F & U/F PUMPS 3610-WR-1912-C1A-20"-N 3950-WG-1011-C1A-6"-N SIZE: MATERIAL: CAPACITY: TRIM: C2-3610-TK-095 CLARIFIER OVERFLOW TANK 3610-WR-1914-C1A-8"-N 3610-WR-1913-C1A-8"-N SIZE: MATERIAL: MOTOR: C2-3610-PP-009 CLARIIFIER OVERFLOW TRANSFER PUMP NO. 2 3610-WR-1909-C1A-16"-N SIZE: MATERIAL: MOTOR: C2-3610-PP-008 CLARIFIER OVERFLOW TRANSFER PUMP NO. 1 3610-WR-1908-C1A-16"-N 3610-WR-1910-C1A-12"-N 3610-WG-1062-C1A-1"-N 3610-WR-1893-C1A-4"-N ES ES 3610-WR-1295-C1A-4"-N ES 3610-WR-1905-C1A-16"-N 3610-WR-1915-C1A-4"-N 3610-WR-1911-C1A-12"-N 3610-WR-1897-C1A-4"-N D 4 F B A 3 2 1 5 6 8 E 7 C REV. APPROVED CHK. DES. REV. DATE REVISION DESCRIPTION CLIENT LEAD ENGINEER SCALE DRAWING NUMBER CHECK DESIGN CHECK DRAWING DESIGNED BY DRAWN BY APPROVAL DATE APPROVAL DATE APPROVED CHK. DES. REV. DATE REVISION DESCRIPTION REFERENCE DRAWING No. 1:100 0 1:200 5m 10m 0 5m 10m 15m 20m 1:500 10m 0 20m 30m 40m 50m 1:1000 0 100m 50m 1:20 0 0.5m 1m 1.5m 2m 0 1:25 0.5m 1m 1.5m 1:33 1/3 2.5m 2m 0 1m 2m 3m 0 1:50 1m 2m 3m 4m 5m CAD FILE NAME: P:0CAD000SPEM** MODEL UPDATED: DWG. FILE UPDATED: MANUAL CHANGES MADE: YES NO YES NO YES NO PROJECT MANAGER ENGINEERING MANAGER AREA PROJECTENGINEER REFERENCE DRAWINGS SAFETY SHARE: APPROVAL DATE CONTRACT NO. SAFETY SHARE : BA6CVA1.IGR NOTICE: THIS DRAWING HAS NOT BEEN PUBLISHED AND IS THE SOLE PROPERTY OF FLUOR AND IS LENT TO THE BORROWER FOR THEIR CONFIDENTIAL USE ONLY, AND IN CONSIDERATION OF THE LOAN OF THIS DRAWING, THE BORROWER PROMISES AND AGREES TO RETURN IT UPON REQUEST AND AGREES THAT IT WILL NOT BE REPRODUCED, COPIED LENT OR OTHERWISE DISPOSED OF DIRECTLY OR INDIRECTLY, NOR USED FOR ANY OTHER PURPOSE OTHER THAN WHICH IT IS FURNISHED. NONE Apr 2011 240K-C2- GLAND SEAL WATER 3026 3900-25J-023 FI CONC. CLARIFIER O/F CONCENTRATE CLARIFIER, C2-3610-TK-006 2591 3600-25J-003 3610 00419 XV + FI 3610 00419 XA MISMATCH 3610 00419 ZS OP/CL 3610 00409 XV + FI 3610 00409 XA MISMATCH 3610 00409 ZS OP/CL T1 T1 3610 00491 XA 3610 00491 II M 3610 00434 FI 3610 00434 FIT 3610 00492 HS J/SP 3610 00492 XA 3610 00492 II 3610 00491 HS J/SP L, P2 LL, P1 FAULT FAULT C2-3610-PP-017 C2-3610-PP-016 3"x2-1/2" 3610 00434 FE + 3"x2-1/2" ES 3610 00439 XV + FI 3610 00439 XA MISMATCH 3610 00439 ZS OP/CL 3610 00429 XV + FI 3610 00429 XA MISMATCH 3610 00429 ZS OP/CL 3610 00435 PI 3610 00435 PIT M 3610 00424 FI 3610 00424 FIT L, P2 LL, P1 3610 00424 FE + 3610 00425 PI 3610 00425 PIT L,P2 L,P2 3610-SL-1814-R1A-3"-N 3610-SL-1815-R1A-3"-N 3610 00428 XA MISMATCH 3610 00428 ZS OP/CL 8"x6" TO FLOOR 3610 00438 XA MISMATCH 3610 00438 ZS OP/CL 8"x6" TO FLOOR 3610-WG-1119-C1A-1"-N 3610-WG-1118-C1A-1"-N 3610-SL-1817-C1B-2"-N 3610-SL-1816-C1B-2"-N 3610 00428 XV + 3610 00438 XV + ES SIZE: MATERIAL: MOTOR: C2-3610-PP-016 CLARIFIER UNDERFLOW PUMP NO. 3 SIZE: MATERIAL: MOTOR: C2-3610-PP-017 CLARIFIER UNDERFLOW PUMP NO. 4 M 3610 00421 FIT 3610 00421 FIC 3610 00421 FE + ES 3610 00421 DE 3610 00421 DX 3610 00421 DIT 3610 00421 DIC CONC. CLARIFIER U/F CONCENTRATE CLARIFIER FEED BOX, C2-3610-BX-006 3733 3600-25J-003 CONC. CLARIFIER U/F CU-MO CONC. THICKENER FEED BOX, C2-3510-BX-003 3734 3500-25J-001 C2-3710-LA-001 CONC. CLARIFIER U/F CONCENTRATE CLARIFIER, C2-3610-TK-006 4091 3600-25J-003 CONC. CLARIFIER U/F CONCENTRATE CLARIFIER, C2-3610-TK-006 3605 3600-25J-003 3610-SL-1818-C1B-2"-N CONC CLARIFIER O/F MO 1ST CLEANER FLOTATION 4140 3500-25J-007 CONC CLARIFIER O/F MO CL SCAVENGER FLOTATION 4141 3500-25J-012 CONC CLARIFIER O/F MO 2ND CLEANER FLOTATION 4142 3500-25J-015 3610-WR- -C1A-4"-N 3610-WR- -C1A-6"-N 3610-WR- -C1A-4"-N 3610-SL-1604-C1B-2"-N 3610-SL- -C1B-2"-N 3610 00427 XV + V1 3610 00427 XA MISMATCH 3610 00427 ZS OP/CL 3610 00407 XV + V1 3610 00407 XA MISMATCH 3610 00407 ZS OP/CL 3610 00417 XV + V1 3610 00417 XA MISMATCH 3610 00417 ZS OP/CL CONC. CLARIFIER O/F CU CONC THICKENER FEED BOX, C2-3610-BX-001 4134 3600-25J-001
  • 207.
    T1 T1 T1 3620 00503 ZS 3620 00537 ZS 3620 00503 XA 3620 00537 XA 3620 00507 ZS 3620 00527 ZS 3620 00547 ZS 3620 00517 ZS 3620 00507 XA 3620 00527 XA 3620 00547 XA 3620 00517 XA 3620 00523 ZS 3620 00523 XA 3620 00522 LE 3620 00591 II 3620 00502 LI 3620 00581 II 3620 00502 LE 3620 00567 XA 3620 00567 ZS 3620 00522 LIT OP/CL 3620 00591 XA FAULT 3620 00571 II 3620 00571 HS 3620 00522 LI 3620 00581 HS J/SP 3620 00571 XA 3620 00591 HS J/SP 3620 00581 XA FAULT 3620 00502 LIT TO FLOOR SUMP CUCONC. FILTER FEED CU CONC. FILTER NO.2 FEED PUMP, C2-3620-PP-050 3607 3600-25J-008 CU CONC. FILTER FEED CU CONC. FILTER NO.3 FEED PUMP, C2-3620-PP-066 3608 3600-25J-008 CU CONC. FILTER FEED CU CONC. FILTER NO.1 FEED PUMP, C2-3620-PP-049 3606 3600-25J-008 CU CONC. FILTER FEED CU CONC. FILTER FEED PUMP (STANDBY), C2-3620-PP-067 3609 3600-25J-008 CU CONC. THICKENER U/F CU CONCENTRATE THICKENER U/F PUMPS 2221 3600-25J-001 OP/CL OP/CL OP/CL OP/CL OP/CL J/SP OP/CL MIN MIN MIN MIN FAULT C2-3610-PP-045/046 O/F L, P2 LL, P1 H, P2 MIN. SCRAP DRUM L, P2 LL, P1 H, P2 MIN. 3620 00547 XV + C2-3620-SC-031 3620 00527 XV + 3620 00503 XV + C2-3620-TK-027 30" C2-3620-BX-041 C2-3620-AG-028 10" 3620 00507 XV + FI FI FI FI FI FI FI 3620-SL-1606-R1B-6"-N 3620-SL-1610-R1B-16"-N FI SIZE: C2-3620-SC-031 CU CONCENTRATE SAFETY SCREEN 3620 00523 XV + C2-3620-AG-027 30" C2-3620-ST-034 C2-3620-DI-027 3620 00537 XV + C2-3620-TK-028 3620 00517 XV + AG KM LT ISSUED FOR CLIENT REVIEW 22-Dec-11 B RP ISSUED FOR COMBINED REVIEW 30-Jun-11 A 12/22/2011 K. MUNDY A.GUNSON A. REGNAULT L.TAMELIN 12/22/2011 2:04:56 PM WBS: 3620 B PIPING AND INSTRUMENTATION DIAGRAM CONCENTRATE TANKS AND FILTERING 3600-25J-005 CONCENTRATE STORAGE TANKS SIZE: MATERIAL: CAPACITY: TRIM: C2-3620-TK-028 CU CONCENTRATE FILTER FEED TANK NO.2 SIZE: MATERIAL: MOTOR: C2-3620-AG-027 CU CONCENTRATE FILTER FEED TANK NO.1 AGITATOR ES SIZE: C2-3620-DI-027 CU CONCENTRATE FILTER FEED TANK DISTRIBUTOR SIZE: C2-3620-ST-034 CU CONCENTRATE SAFETY SCREEN NO.1 OVERSIZE DISCHARGE CHUTE 3610-SL-1586-R1A-8"-N ES V SIZE: MATERIAL: CAPACITY: TRIM: C2-3620-TK-027 CU CONCENTRATE FILTER FEED TANK NO.1 V V V SIZE: MATERIAL: MOTOR: C2-3620-AG-028 CU CONCENTRATE FILTER FEED TANK NO.2 AGITATOR SIZE: C2-3620-BX-041 SAFETY SCREEN FEED BOX D 4 F B A 3 2 1 5 6 8 E 7 C REV. APPROVED CHK. DES. REV. DATE REVISION DESCRIPTION CLIENT LEAD ENGINEER SCALE DRAWING NUMBER CHECK DESIGN CHECK DRAWING DESIGNED BY DRAWN BY APPROVAL DATE APPROVAL DATE APPROVED CHK. DES. REV. DATE REVISION DESCRIPTION REFERENCE DRAWING No. 1:100 0 1:200 5m 10m 0 5m 10m 15m 20m 1:500 10m 0 20m 30m 40m 50m 1:1000 0 100m 50m 1:20 0 0.5m 1m 1.5m 2m 0 1:25 0.5m 1m 1.5m 1:33 1/3 2.5m 2m 0 1m 2m 3m 0 1:50 1m 2m 3m 4m 5m CAD FILE NAME: P:0CAD000SPEM** MODEL UPDATED: DWG. FILE UPDATED: MANUAL CHANGES MADE: YES NO YES NO YES NO PROJECT MANAGER ENGINEERING MANAGER AREA PROJECTENGINEER REFERENCE DRAWINGS SAFETY SHARE: APPROVAL DATE CONTRACT NO. SAFETY SHARE : BA6CVA1.IGR NOTICE: THIS DRAWING HAS NOT BEEN PUBLISHED AND IS THE SOLE PROPERTY OF FLUOR AND IS LENT TO THE BORROWER FOR THEIR CONFIDENTIAL USE ONLY, AND IN CONSIDERATION OF THE LOAN OF THIS DRAWING, THE BORROWER PROMISES AND AGREES TO RETURN IT UPON REQUEST AND AGREES THAT IT WILL NOT BE REPRODUCED, COPIED LENT OR OTHERWISE DISPOSED OF DIRECTLY OR INDIRECTLY, NOR USED FOR ANY OTHER PURPOSE OTHER THAN WHICH IT IS FURNISHED. NONE Apr 2011 240K-C2- MISMATCH MISMATCH MISMATCH MISMATCH MISMATCH MISMATCH MISMATCH MISMATCH 3620-SL-1607-R1B-6"-N 3620-SL-1612-R1B-12"-N 3620-SL-1613-R1B-12"-N 3620-SL-1614-R1B-12"-N 3620-SL-1615-R1B-12"-N 3620 00567 XV + CU CONC FILTER FEED CONC FILTER FEED PUMPS, C2-3620-PP-044/050/051/066 4147 3600-25J-001 3620-SL-1601-R1A-8"-N 3620-SL-1812-R1B-16"-N 3620-SL-1401-R1A-10"-N 3620-WR- -R1A-2"-N CONC, CLARIFIER U/F CLARIFIER UNDERFLOW PUMPS, 4138 3600-25J-003 PROCESS WATER 4137 3600-25J-002 CU-MO-THICKENER U/F CU-MO THICKENER U/F PUMPS, CU-3510-PP-055/056 3313 3500-25J-001 C2-3620-PP-044/050/051/066
  • 208.
    T1 T1 T8 T1 T1 T1 T1 3620 00691 XA 3620 00629 ZS 3620 00629 XA MISMATCH 3610 00617 XA MISMATCH 3610 00617 ZS OP/CL 3620 00627 ZS 3620 00627 XA 3620 00637 ZS 3620 00637 XA 3620 00607 ZS OP/CL 3620 00607 XA 3620 00609 ZS OP/CL 3620 00609 XA 3620 00684 II 3620 00684 HS J/SP 3620 00684 XA 3620 00691 HS J/SP 3620 00691 II 3620 00647 XA 3620 00647 ZS 3620 00685 XA 3620 00685 HS J/SP 3620 00685 II 3620 00618 ZS 3620 00618 XA MISMATCH 3620 00628 ZS 3620 00628 XAMISMATCH 3620 00638 XA MISMATCH 3620 00638 ZS 3620 00601 LE 3620 00601 A LI 3620 00681 HS J/SP 3620 00681 XA 3610 00681 II 3620 00682 HS J/SP 3620 00682 II 3620 00682 XA 3620 00683 HS J/SP 3620 00683 XA 3620 00683 II 3620 00606 ZS OP/CL 3620 00608 ZS OP/CL 3620 00608 XA 3620 00606 XA 3620 00639 ZS OP/CL 3620 00639 XA MISMATCH 3620 00602 LIT 3620 00602 LI 3620 00692 HS J/SP 3620 00692 II 3620 00619 ZS OP/CL 3620 00602 LE 3620 00692 XA 3620 00619 XA MISMATCH 3620 00601 LIC H, P2 L, P2 3620 00601 LT MISMATCH CLOTH WASH WATER CU CONC. FILTER NO.1, C2-3620-FL-001 2140 3600-25J-007 CLOTH WASH WATER CU CONC. FILTER NO.2, C2-3620-FL-002 2141 3600-25J-012 CLOTH WASH WATER CU CONC. FILTER NO.3, C2-3620-FL-003 2142 3600-25J-013 FILTER AREA SUMP CU CONC. THICKENER FEED BOX, C2-3610-BX-001 2164 3600-25J-001 FRESH WATER 2143 FAULT FAULT FAULT H, P2 L, P2 LL, P1 FAULT FAULT FAULT MISMATCH OP/CL OP/CL MISMATCH MISMATCH MISMATCH MISMATCH MISMATCH FAULT OP/CL OP/CL OP/CL OP/CL OP/CL 3620-WF-1523-C1A-3"-N FI FI FI C2-3620-PW-061 C2-3620-PP-035 SIZE: MATERIAL: MOTOR: C2-3620-PP-035 CU CONCENTRATE FILTER AREA SPILLAGE PUMP C2-3620-PW-097 SIZE: MATERIAL: MOTOR: C2-3620-PW-060 CU CONCENTRATE GLAND SEAL WATER PUMP NO.1 SIZE: MATERIAL: CAPACITY: TRIM: C2-3620-TK-060 CU CONCENTRATE GLAND SEAL WATER TANK 3620 00606 XV + SIZE: MATERIAL: MOTOR: C2-3620-PW-061 CU CONCENTRATE GLAND SEAL WATER PUMP NO.2 SIZE: MATERIAL: MOTOR: C2-3620-PW-097 CU CONCENTRATE FILTER NO.3 CLOTH WASH PUMP C2-3620-PW-095 SIZE: MATERIAL: MOTOR: C2-3620-PW-095 CU CONCENTRATE FILTER NO.1 CLOTH WASH PUMP C2-3620-PW-060 SIZE: MATERIAL: MOTOR: C2-3620-PW-096 CU CONCENTRATE FILTER NO.2 CLOTH WASH PUMP 3620 00607 XV + 3620 00609 XV + 3620 00608 XV + 3620-SL-1634-C1B-4"-N C2-3620-PW-096 C2-3620-TK-060 3620 00601 LV + FI 3620-WF-1442-C1A-3"-N 3620-WG-1102-C1A-2"-N 3620 00629 XV + 3620-WF-1199-C1A-2"-N 3620-WF-1528-C1A-2"-N FI 3620 00647 XV + 3620-WF-1441-C1A-3"-N 3620-WG-1103-C1A-2"-N 3620-WF-1443-C1A-3"-N C2-3620-PW-098 SIZE: MATERIAL: MOTOR: C2-3620-PW-098 CU CONCENTRATE FILTER CLOTH WASH PUMP (STANDBY) FI 3620 00619 XV + 3610 00617 XV + 3620 00627 XV + 3620 00637 XV + 2"x3" 4"x3" 3620 00639 XV + FI FI 3620 00618 XV + FI 3620 00628 XV + 3620 00638 XV + FI TO FLOOR SUMP ES FI FI FI FI D 4 F B A 3 2 1 5 6 8 E 7 C REV. APPROVED CHK. DES. REV. DATE REVISION DESCRIPTION CLIENT LEAD ENGINEER SCALE DRAWING NUMBER CHECK DESIGN CHECK DRAWING DESIGNED BY DRAWN BY APPROVAL DATE APPROVAL DATE APPROVED CHK. DES. REV. DATE REVISION DESCRIPTION REFERENCE DRAWING No. 1:100 0 1:200 5m 10m 0 5m 10m 15m 20m 1:500 10m 0 20m 30m 40m 50m 1:1000 0 100m 50m 1:20 0 0.5m 1m 1.5m 2m 0 1:25 0.5m 1m 1.5m 1:33 1/3 2.5m 2m 0 1m 2m 3m 0 1:50 1m 2m 3m 4m 5m CAD FILE NAME: P:0CAD000SPEM** MODEL UPDATED: DWG. FILE UPDATED: MANUAL CHANGES MADE: YES NO YES NO YES NO PROJECT MANAGER ENGINEERING MANAGER AREA PROJECTENGINEER REFERENCE DRAWINGS SAFETY SHARE: APPROVAL DATE CONTRACT NO. SAFETY SHARE : BA6CVA1.IGR NOTICE: THIS DRAWING HAS NOT BEEN PUBLISHED AND IS THE SOLE PROPERTY OF FLUOR AND IS LENT TO THE BORROWER FOR THEIR CONFIDENTIAL USE ONLY, AND IN CONSIDERATION OF THE LOAN OF THIS DRAWING, THE BORROWER PROMISES AND AGREES TO RETURN IT UPON REQUEST AND AGREES THAT IT WILL NOT BE REPRODUCED, COPIED LENT OR OTHERWISE DISPOSED OF DIRECTLY OR INDIRECTLY, NOR USED FOR ANY OTHER PURPOSE OTHER THAN WHICH IT IS FURNISHED. NONE Apr 2011 240K-C2- 3620-WG-1105-C1A-2"-N GLAND SEAL WATER CU CONC. FILTER FEED PUMPS, 3735 3600-25J-008 3620-WF-1444-C1A-2"-N 3620-WF-1524-C1A-2"-N 3620-WF-1445-C1A-2"-N 3620-WF-1446-C1A-2"-N 3620-WF-1527-C1A-2"-N 3620-WF-1526-C1A-2"-N 3620-WF-1525-C1A-2"-N AG KM LT ISSUED FOR CLIENT REVIEW 22-Dec-11 B RP ISSUED FOR COMBINED REVIEW 30-Jun-11 A 12/22/2011 K. MUNDY A. GUNSON A. REGNAULT L. TAMELIN 12/22/2011 2:06:11 PM WBS: 3620 B PIPING AND INSTRUMENTATION DIAGRAM CONCENTRATE TANKS AND FILTERING 3600-25J-006 CU FILTER ANCILLARIES - SHEET 1 OF 3 FILTER DRAIN CONTENTS CU CONCENTRATE FILTER NO.3 FLOOR DRAIN 2572 3600-25J-013 FILTER DRAIN CONTENTS CU CONCENTRATE FILTER NO.1 FLOOR DRAIN 2297 3600-25J-007 FILTER DRAIN CONTENTS CU CONCENTRATE FILTER NO.2 FLOOR DRAIN 2566 3600-25J-012 3620-DR-1011-C1B-4"-N 3620-DR-1009-C1B-4"-N 3620-DR-1010-C1B-4"-N 3620-WG-1104-C1A-2"-N CONTENTS C2-3620-PP-049/050/066/067
  • 209.
    3620 00705 XA 3620 00705 ZS OP/CL 3620 00781 HS J/SP 3620 00781 XA 3620 00781 II 3620 00782 HS J/SP 3620 00782 XA 3620 00782 II 3620 00706 A WE 3620 00706 B WE 3620 00706A WI 3620 00706 B WI 3620 00706 B WT 3620 00706 A WT 3620 00704 HSL 3620 00703 XL 3620 00701 PIT 3610 00702 WIT 3610 00702 WE FILTER FEED CONTROL, C2-3610-PP-099 2846 3600-25J-008 CU FILTRATE CONC. CLARIFIER FEED LAUNDER, C2-3610-LA-009 3347 3600-25J-003 CU FILTRATE CONC. CLARIFIER FEED LAUNDER, C2-3610-LA-009 3348 3600-25J-003 MUFFLER DISCHARGE CONC. CLARIFIER FEED LAUNDER, C2-3610-LA-009 3349 3600-25J-003 INSTRUMENT AIR 2294 3900-25J-022 CU CONC. FILTER FEED CU CONC. FILTER NO.1 FEED PUMP, C2-3620-PP-049 2169 3600-25J-008 PLANT AIR CU CONC. FILTER NO.1 DRYING AIR RECEIVER, 2136 3600-25J-011 HIGH PRESSURE AIR CU CONC. FILTER NO.1 PRESSING AIR RECEIVER, 2138 3600-25J-011 CU FILTER DISCHARGE CONCENTRATE STORAGE 2296 3600-25J-017 CLOTH WASH WATER CU CONC. FILTER NO.1 CLOTH WASH PUMP, 2140 3600-25J-006 OIL HEATER DRUM MIN. 1% MIN. 6.5% NOTE 1 FLOOR DRAIN C2-3620-VS-041 HYDRAULIC PUMP MIN. 2 M C2-3620-PW-095 SLOPE FILTER CONTROL PANEL FILTER HYDRAULIC POWER UNIT NOTES: 1. DISCHARGE WARNING HORN & STROBE LOCATED IN CONCENTRATE STORAGE AREA REFERENCE VENDOR DRAWINGS SLOPE SLOPE OIL COOLER FAN SLOPE FAULT FAULT SLOPE MIN. 1% MIN. 1% C2-3620-VS-051 MIN. 1% MISMATCH C2-3620-ST-621 V 8"x6" 1-1/2" 8"x6" 3620 00705 XV + V V V 6"x4" 2"x1/2" 1-1/2" C2-3620-TK-044 C2-3620-CO-501 1-1/2" C2-3620-ST-623 10"x6" C2-3620-FL-001 3620 00703 XA + C2-3620-ST-622 C2-3620-ZM-074 1-1/2" C2-3620-ST-627 C2-3620-HY-501 AG KM LT ISSUED FOR CLIENT REVIEW 22-Dec-11 B RP ISSUED FOR COMBINED REVIEW 30-Jun-11 A 12/22/2011 K. MUNDY A. GUNSON A. REGNAULT L. TAMELIN 12/22/2011 2:07:21 PM WBS: 3620 B PIPING AND INSTRUMENTATION DIAGRAM CONCENTRATE TANKS AND FILTERING 3600-25J-007 CU CONCENTRATE FILTER NO. 1 3620-SL-1626-C1B-6"-N V 3620-AI-1024-G1A-2"-N 3620-SL-1623-R1A-8"-N SIZE: C2-3620-ST-627 FILTER NO.1 HYDRAULIC CONTAINMENT DUCT 3620-SL-1629-C1B-6"-N V SIZE: C2-3620-ZM-074 CU CONCENTRATE FILTER NO.1 MUFFLER 3620-SL-1628-C1B-6"-N SIZE: MATERIAL: CAPACITY: TRIM:C1B C2-3620-TK-044 AIR RELEASE TANK NO.1 3620-OLL-1043-S1A-1/2"-N 3620-SL-1594-C1B-10"-N V SIZE: C2-3620-ST-622 CU CONCENTRATE FILTER NO.1 DISCHARGE CHUTE 3620-SL-1620-R1B-8"-N 3610-SL-1626-C1B-10"-N 3620-SL-1591-C1B-6"-N 3620-AP-1313-C1A-4"-N V 3620-SL-1623-R1A-8"-N 3620-AP-1270-C1A-4"-N V 3620-WF-1444-C1A-2"-N SIZE: C2-3620-HY-501 CU CONCENTRATE FILTER NO.1 HYDRAULIC UNIT V V V 3620-AHP-1010-C1G-3"-N SIZE: C2-3620-ST-623 CU CONCENTRATE FILTER NO.1 DISCHARGE CHUTE V V SIZE: C2-3620-CO-501 CU CONCENTRATE FILTER NO.1 CONTROL PANEL SIZE: C2-3620-ST-621 CU CONCENTRATE FILTER NO.1 DISCHARGE CHUTE SIZE: MATERIAL: MOTOR: C2-3620-FL-001 CU CONCENTRATE FILTER NO.1 3620-SL-1624-R1A-6"-N 3620-DR-1009-C1B-4"-N V 3620-SL-1627-C1B-6"-N D 4 F B A 3 2 1 5 6 8 E 7 C REV. APPROVED CHK. DES. REV. DATE REVISION DESCRIPTION CLIENT LEAD ENGINEER SCALE DRAWING NUMBER CHECK DESIGN CHECK DRAWING DESIGNED BY DRAWN BY APPROVAL DATE APPROVAL DATE APPROVED CHK. DES. REV. DATE REVISION DESCRIPTION REFERENCE DRAWING No. 1:100 0 1:200 5m 10m 0 5m 10m 15m 20m 1:500 10m 0 20m 30m 40m 50m 1:1000 0 100m 50m 1:20 0 0.5m 1m 1.5m 2m 0 1:25 0.5m 1m 1.5m 1:33 1/3 2.5m 2m 0 1m 2m 3m 0 1:50 1m 2m 3m 4m 5m CAD FILE NAME: P:0CAD000SPEM** MODEL UPDATED: DWG. FILE UPDATED: MANUAL CHANGES MADE: YES NO YES NO YES NO PROJECT MANAGER ENGINEERING MANAGER AREA PROJECTENGINEER REFERENCE DRAWINGS SAFETY SHARE: APPROVAL DATE CONTRACT NO. SAFETY SHARE : BA6CVA1.IGR NOTICE: THIS DRAWING HAS NOT BEEN PUBLISHED AND IS THE SOLE PROPERTY OF FLUOR AND IS LENT TO THE BORROWER FOR THEIR CONFIDENTIAL USE ONLY, AND IN CONSIDERATION OF THE LOAN OF THIS DRAWING, THE BORROWER PROMISES AND AGREES TO RETURN IT UPON REQUEST AND AGREES THAT IT WILL NOT BE REPRODUCED, COPIED LENT OR OTHERWISE DISPOSED OF DIRECTLY OR INDIRECTLY, NOR USED FOR ANY OTHER PURPOSE OTHER THAN WHICH IT IS FURNISHED. NONE Apr 2011 240K-C2- 3620-WR-2013-C1A-1-1/2"-N 3620-SL-1630-C1B-4"-N 3620-SL-1633-C1B-4"-N 3620-WR-1921-C1A-6"-N FILTER DRAIN CONTENTS CU CONC. FILTER AREA SPILLAGE SUMP 2297 3600-25J-006 VENDOR 3620-OLL-1042-S1A-2"-N MANIFOLD FLUSH WATER CU CONC. FILTER NO.1 MANIFOLD FLUSH PUMP, 2149 3600-25J-014 VENDOR
  • 210.
    T3 3620 00835 PIT 3620 00834 FIT 3620 00835 PI L,P2 3620 00834 FI M 3620 00884 SIC 3620 00884 II 3620 00884 HS 3620 00836 ZS 3620 00836 XA TO FLOOR J/SP L,P2 LL,P1 AFD AG KM LT ISSUED FORCLIENT REVIEW 22-Dec-11 B NOT USED A 12/22/2011 K. MUNDY A. GUNSON A. REGNAULT L. TAMELIN 12/22/2011 2:51:11 PM WBS: 3620 B PIPING AND INSTRUMENTATION DIAGRAM CONCENTRATE TANKS AND FILTERING 3600-25J-008 CU CONCENTRATE FILTER FEED PUMPS ES 3620 00834 FE + FI 3"x2" 3"x1" 8"x6" 2"x1-1/4" D 4 F B A 3 2 1 5 6 8 E 7 C REV. APPROVED CHK. DES. REV. DATE REVISION DESCRIPTION CLIENT LEAD ENGINEER SCALE DRAWING NUMBER CHECK DESIGN CHECK DRAWING DESIGNED BY DRAWN BY APPROVAL DATE APPROVAL DATE APPROVED CHK. DES. REV. DATE REVISION DESCRIPTION REFERENCE DRAWING No. 1:100 0 1:200 5m 10m 0 5m 10m 15m 20m 1:500 10m 0 20m 30m 40m 50m 1:1000 0 100m 50m 1:20 0 0.5m 1m 1.5m 2m 0 1:25 0.5m 1m 1.5m 1:33 1/3 2.5m 2m 0 1m 2m 3m 0 1:50 1m 2m 3m 4m 5m CAD FILE NAME: P:0CAD000SPEM** MODEL UPDATED: DWG. FILE UPDATED: MANUAL CHANGES MADE: YES NO YES NO YES NO PROJECT MANAGER ENGINEERING MANAGER AREA PROJECTENGINEER REFERENCE DRAWINGS SAFETY SHARE: APPROVAL DATE CONTRACT NO. SAFETY SHARE : BA6CVA1.IGR NOTICE: THIS DRAWING HAS NOT BEEN PUBLISHED AND IS THE SOLE PROPERTY OF FLUOR AND IS LENT TO THE BORROWER FOR THEIR CONFIDENTIAL USE ONLY, AND IN CONSIDERATION OF THE LOAN OF THIS DRAWING, THE BORROWER PROMISES AND AGREES TO RETURN IT UPON REQUEST AND AGREES THAT IT WILL NOT BE REPRODUCED, COPIED LENT OR OTHERWISE DISPOSED OF DIRECTLY OR INDIRECTLY, NOR USED FOR ANY OTHER PURPOSE OTHER THAN WHICH IT IS FURNISHED. NONE Apr 2011 240K-C2- 3620 00839 ZS 3620 00839 XA OP/CL 3620 00839 XV + 3620 00836 XV + T3 3620 00825 PIT 3620 00824 FIT 3620 00825 PI L,P2 3620 00824 FI M 3620 00883 SIC 3620 00883 II 3620 00883 HS 3620 00826 ZS 3620 00826 XA TO FLOOR J/SP L,P2 LL,P1 AFD ES 3620 00824 FE + FI 3"x2" 3"x1" 8"x6" 2"x1-1/4" 3620 00829 ZS 3620 00829 XA OP/CL 3620 00829 XV + 3620 00826 XV + T3 3620 00815 PIT 3620 00814 FIT 3620 00815 PI L,P2 3620 00814 FI M 3620 00882 SIC 3620 00882 II 3620 00882 HS 3620 00816 ZS 3620 00816 XA TO FLOOR J/SP L,P2 LL,P1 AFD ES 3620 00814 FE + FI 3"x2" 3"x1" 8"x6" 2"x1-1/4" 3620 00819 ZS 3620 00819 XA OP/CL 3620 00819 XV + 3620 00816 XV + T3 3620 00805 PIT 3620 00804 FIT 3620 00805 PI L,P2 3620 00804 FI M 3620 00881 SIC 3620 00881 II 3620 00881 HS 3620 00806 ZS 3620 00806 XA TO FLOOR J/SP L,P2 LL,P1 AFD ES 3620 00804 FE + FI 3"x2" 3"x1" 8"x6" 2"x1-1/4" 3620 00809 ZS 3620 00809 XA OP/CL 3620 00809 XV + 3620 00806 XV + 3620 00838 ZS 3620 00838 XA FI 3620 00838 XV + 3620 00828 ZS 3620 00828 XA FI 3620 00828 XV + 3620 00808 ZS 3620 00808 XA FI 3620 00808 XV + 3620 00818 ZS 3620 00818 XA FI 3620 00818 XV + MISMATCH MISMATCH MISMATCH MISMATCH MISMATCH MISMATCH MISMATCH MISMATCH 3620 00801 DIT 3620 00801 DI OP/CL 3620 00801 FIT M 3620 00801 DX 3620 00801 DE 3620 00801 FE + 3620 00803 XV + 3620 00801 FY FL MASS FLOW 3620 00803 XA 3620 00801 FI 3620 00803 ZS 3620 00801 WQI 3620 00821 DIT 3620 00821 DI OP/CL 3620 00821 FIT M 3620 00821 DX 3620 00821 DE 3620 00821 FE + 3620 00813 XV + 3620 00821 FY FL MASS FLOW 3620 00813 XA 3620 00821 FI 3620 00813 ZS 3620 00821 WQI 3620 00841 DIT 3620 00841 DI OP/CL 3620 00841 FIT M 3620 00841 DX 3620 00841 DE 3620 00841 FE + 3620 00823 XV + 3620 00841 FY FL MASS FLOW 3620 00823 XA 3620 00841 FI 3620 00823 ZS 3620 00841 WQI CU CONC FILTER FEED CU CONC. STORAGE TANKS, C2-3610-TK-027/028 3606 3600-25J-005 CU CONC FILTER FEED CU CONC. STORAGE TANKS, C2-3610-TK-027/028 3607 3600-25J-005 CU CONC FILTER FEED CU CONC. STORAGE TANKS C2-3610-TK-027/028 3608 3600-25J-005 CU CONC FILTER FEED CU CONC. STORAGE TANKS, C2-3610-TK-027/028 3609 3600-25J-005 CU CONC. FILTER FEED CU CONC. FILTER NO.1, C2-3620-FL-001 2169 3600-25J-007 CU CONC. FILTER FEED CU CONC. FILTER NO.3, C2-3610-FL-003 2168 3600-25J-013 CU CONC. FILTER FEED CU CONC. FILTER NO.2, C2-3610-FL-002 2170 3600-25J-012 FILTER FEED CONTROL FROM FILTER NO.3 PLC 2845 3600-25J-013 FILTER FEED CONTROL FROM FILTER NO.2 PLC 2847 3600-25J-012 FILTER FEED CONTROL FROM FILTER NO.1 PLC 2846 3600-25J-007 FILTER FEED CONTROL - FILTERS NO.2 & NO.3 PLCS 3622 3600-25J-013 C2-3620-PP-049 C2-3620-PP-050 C2-3620-PP-066 C2-3620-PP-067 SIZE: MATERIAL: MOTOR: C2-3620-PP-049 CU CONCENTRATE FILTER NO.1 FEED PUMP SIZE: MATERIAL: MOTOR: C2-3620-PP-050 CU CONCENTRATE FILTER NO.2 FEED PUMP SIZE: MATERIAL: MOTOR: C2-3620-PP-066 CU CONCENTRATE FILTER NO.3 FEED PUMP (AFD) SIZE: MATERIAL: MOTOR: C2-3620-PP-067 CU CONCENTRATE FILTER FEED PUMP (STANDBY) MISMATCH MISMATCH MISMATCH MISMATCH MISMATCH MISMATCH MISMATCH 3620-SL-1620-R1B-8"-N 3620-SL-00810-R1B-16"-N 3620-SL-1621-R1B-8"-N 3620-SL-1622-R1B-8"-N 3620-SL-1612-R1B-12"-N 3620-SL-1613-R1B-12"-N 3620-SL-1614-R1B-12"-N 3620-SL-1615-R1B-12"-N 3620-WG-1064-C1A-1"-N 3620-WG-1063-C1A-1"-N 3620-WG-1116-C1A-1"-N 3620-WG-1117-C1A-1"-N 3620-SL-1619-R1B-8"-N 3620-SL-1618-R1B-8"-N 3620-SL-1617-R1B-8"-N 3620-SL-1616-R1B-8"-N 3620-SL-1616-R1B-16"-N GLAND SEAL WATER CU CONC. GLAND SEAL WATER PUMP, 3735 3600-25J-006 3620-WG-1104-C1A-2"-N CU CONC. FILTER FEED CU CONC. THICKENER FEED BOX, C2-3620-BX-001 3736 3600-25J-001 3620-WG-1108-C1A-2"-N 3620 XV + V1 3620 00810 XA MISMATCH 3620 00810 ZS OP/CL BYPASS C2-3620-PW-060/061
  • 211.
    T1 T1 T1 T1 T1 T1 3620 01145 PI 3620 01125 PI 3620 01155 PI 3620 01105 PI 3620 01135 PI 3620 01115 PI 3620 01181 HS 3620 01191 XA 3620 01182 HS 3620 01191 HS 3620 01181 II 3620 01181 XA 3620 01183 HS 3620 01183 XA 3620 01183 II 3620 01191 II 3620 01182 II 3620 01182 XA 3620 01192 XA 3620 01192 HS 3620 01192 II 3620 01193 XA 3620 01193 II 3620 01193 HS AUTO DRAIN HIGH PRESSURE AIR CUCONC. FILTER NO.3, C2-3620-FL-003 2158 3600-25J-013 HIGH PRESSURE AIR CU CONC. FILTER NO.2, C2-3620-FL-002 2155 3600-25J-012 PLANT AIR CU CONC.E FILTER NO.3, C2-3620-FL-003 2160 3600-25J-013 HIGH PRESSURE AIR CU CONC. FILTER NO.1, C2-3620-FL-001 2138 3600-25J-007 PLANT AIR CU CONC. FILTER NO.1, C2-3620-FL-001 2136 3600-25J-007 PLANT AIR CU CONC. FILTER NO.2, C2-3620-FL-002 2154 3600-25J-012 J/SP FAULT FAULT FAULT J/SP J/SP J/SP FAULT J/SP FAULT J/SP FAULT DIRT POCKET AUTO DRAIN 862.00 KPA (G) 862.00 KPA (G) AUTO DRAIN DIRT POCKET AUTO DRAIN DIRT POCKET 862.00 KPA (G) AUTO DRAIN DIRT POCKET 862.00 KPA (G) AUTO DRAIN 862.00 KPA (G) DIRT POCKET DIRT POCKET 862.00 KPA (G) VENDOR VENDOR VENDOR VENDOR VENDOR VENDOR 3620 01141 PCV + 3620-AP-1271-C1A-4"-N C2-3620-CO-041 C2-3620-CO-052 SIZE: MATERIAL: MOTOR: C2-3620-CO-052 CU CONCENTRATE FILTER NO.2 PRESSING AIR COMPRESSOR 3620 01132 PSV + SIZE: MATERIAL: MOTOR: C2-3620-CO-041 CU CONCENTRATE FILTER NO.1 DRYING AIR COMPRESSOR 3620-AP-1273-C1A-4"-N SIZE: MATERIAL: MOTOR: C2-3620-CO-051 CU CONCENTRATE FILTER NO.1 PRESSING AIR COMPRESSOR SIZE: MATERIAL: MOTOR: C2-3620-CO-043 CU CONCENTRATE FILTER NO.3 DRYING AIR COMPRESSOR V V V V V V V V V V C2-3620-CO-042 3620 01131 PCV + 3620 01151 PCV + SIZE: MATERIAL: MOTOR: C2-3620-CO-053 CU CONCENTRATE FILTER NO.3 PRESSING AIR COMPRESSOR C2-3620-CO-043 3620 01152 PSV + C2-3620-CO-053 3620 01142 PSV + 3620-AHP-1005-C1G-3"-N SIZE: MATERIAL: MOTOR: C2-3620-CO-042 CU CONCENTRATE FILTER NO.2 DRYING AIR COMPRESSOR TO ATMOSPHERE TO ATMOSPHERE TO ATMOSPHERE TO ATMOSPHERE TO ATMOSPHERE TO ATMOSPHERE 3620-AP-1268-C1A-4"-N C2-3620-CO-051 3620-AP-1315-C1A-4"-N 3620-AP-1313-C1A-4"-N 3620-AP-1314-C1A-4"-N AG KM LT ISSUED FOR CLIENT REVIEW 22-Dec-11 B RP ISSUED FOR COMBINED REVIEW 30-Jun-11 A 12/22/2011 K. MUNDY A. GUNSON A. REGNAULT L. TAMELIN 12/22/2011 2:09:19 PM WBS: 3620 B PIPING AND INSTRUMENTATION DIAGRAM CONCENTRATE TANKS AND FILTERING 3600-25J-011 CU FILTER ANCILLARIES - SHEET 2 OF 3 V V 3620 01104 PSV + PSET= C2-3620-VS-041 V V DRAIN V V V DRAIN V C2-3620-VS-051 V PSET= V 3620 01134 PSV + SIZE: MATERIAL: CAPACITY: TRIM:C1A C2-3620-VS-041 CU CONCENTRATE FILTER NO.1 DRYING AIR RECEIVER SIZE: MATERIAL: CAPACITY: TRIM:C1A C2-3620-VS-051 CU CONCENTRATE FILTER NO.1 PRESSING AIR RECEIVER V PSET= 3620 01114 PSV + V V DRAIN V V V V V PSET= 3620 01144 PSV + V DRAIN V DRAIN PSET= V 3620 01124 PSV + V V V V DRAIN V V PSET= V V V 3620 01154 PSV + 3620-AHP-1003-C1G-3"-N C2-3620-VS-042 C2-3620-VS-052 C2-3620-VS-043 C2-3620-VS-053 SIZE: MATERIAL: CAPACITY: TRIM:C1A C2-3620-VS-042 CU CONCENTRATE FILTER NO.2 DRYING AIR RECEIVER SIZE: MATERIAL: CAPACITY: TRIM:C1A C2-3620-VS-052 CU CONCENTRATE FILTER NO.2 PRESSING AIR RECEIVER SIZE: MATERIAL: CAPACITY: TRIM:C1A C2-3620-VS-043 CU CONCENTRATE FILTER NO.3 DRYING AIR RECEIVER SIZE: MATERIAL: CAPACITY: TRIM:C1A C2-3620-VS-053 CU CONCENTRATE FILTER NO.3 PRESSING AIR RECEIVER V V V V V V 3620-AP-1312-C1A-4"-N 3620-AHP-1004-C1A-3"-N 3620-AHP-1002-C1G-3"-N 3620-AHP-1006-C1G-3"-N 3620-AHP-1010-C1G-3"-N 3620-AHP-1011-C1G-3"-N 3620-AHP-1012-C1G-3"-N 3620-AHP-1009-C1G-3"-N D 4 F B A 3 2 1 5 6 8 E 7 C REV. APPROVED CHK. DES. REV. DATE REVISION DESCRIPTION CLIENT LEAD ENGINEER SCALE DRAWING NUMBER CHECK DESIGN CHECK DRAWING DESIGNED BY DRAWN BY APPROVAL DATE APPROVAL DATE APPROVED CHK. DES. REV. DATE REVISION DESCRIPTION REFERENCE DRAWING No. 1:100 0 1:200 5m 10m 0 5m 10m 15m 20m 1:500 10m 0 20m 30m 40m 50m 1:1000 0 100m 50m 1:20 0 0.5m 1m 1.5m 2m 0 1:25 0.5m 1m 1.5m 1:33 1/3 2.5m 2m 0 1m 2m 3m 0 1:50 1m 2m 3m 4m 5m CAD FILE NAME: P:0CAD000SPEM** MODEL UPDATED: DWG. FILE UPDATED: MANUAL CHANGES MADE: YES NO YES NO YES NO PROJECT MANAGER ENGINEERING MANAGER AREA PROJECTENGINEER REFERENCE DRAWINGS SAFETY SHARE: APPROVAL DATE CONTRACT NO. SAFETY SHARE : BA6CVA1.IGR NOTICE: THIS DRAWING HAS NOT BEEN PUBLISHED AND IS THE SOLE PROPERTY OF FLUOR AND IS LENT TO THE BORROWER FOR THEIR CONFIDENTIAL USE ONLY, AND IN CONSIDERATION OF THE LOAN OF THIS DRAWING, THE BORROWER PROMISES AND AGREES TO RETURN IT UPON REQUEST AND AGREES THAT IT WILL NOT BE REPRODUCED, COPIED LENT OR OTHERWISE DISPOSED OF DIRECTLY OR INDIRECTLY, NOR USED FOR ANY OTHER PURPOSE OTHER THAN WHICH IT IS FURNISHED. NONE Apr 2011 240K-C2- 3620-AP-1269-C1A-4"-N 3620-AP-1272-C1A-4"-N 3620-AP-1274-C1A-4"-N 3620-AHP-1001-C1G-3"-N 3620-AHP-1007-C1G-3"-N 3620-AHP-1008-C1G-3"-N
  • 212.
    VENDOR 3620 01206 B WI 3620 01206 A WI 3620 01206B WT 3620 01206 A WT 3620 01206 B WE 3620 01206 A WE 3620 01201 PIT 3620 01203 XL 3620 01202 WIT 3620 01202 WE 3620 01204 HSL 3620 01205 XA 3620 01205 ZS 3620 01281 II 3620 01281 HS J/SP 3620 01281 XA 3620 01282 HS J/SP 3620 01282 XA 3620 01282 II CU FILTRATE CONC. CLARIFIER FEED LAUNDER, C2-3610-LA-009 3351 3600-25J-003 CU FILTRATE CONC. CLARIFIER FEED LAUNDER, C2-3610-LA-009 3352 3600-25J-003 MUFFLER DISCHARGE CONC. CLARIFIER FEED LAUNDER, C2-3610-LA-009 3353 3600-25J-003 FILTER FEED CONTROL, C2-3620-PP-050 2847 3600-25J-008 FILTER DRAIN CONTENTS CU CONC. FILTER AREA SPILLAGE SUMP 2566 3600-25J-006 INSTRUMENT AIR 2567 3900-25J-022 PLANT AIR CU CONC. FILTER NO.2 DRYING AIR RECEIVER, 2154 3600-25J-011 CLOTH WASH WATER CU CONC. FILTER NO.2 CLOTH WASH PUMP, 2141 3600-25J-006 C2-3620-PW-096 MANIFOLD FLUSH WATER CU CONC. FILTER NO.2 MANIFOLD FLUSH PUMP, 2150 3600-25J-014 CU CONC. FILTER FEED CU CONC. FILTER NO.2 FEED PUMP, C2-3620-PP-050 2170 3600-25J-008 HIGH PRESSURE AIR CU CONC. FILTER NO.2 PRESSING AIR RECEIVER, 2155 3600-25J-011 CU FILTER DISCHARGE CONCENTRATE STORAGE 2301 3600-25J-017 C2-3620-VS-042 C2-3620-VS-052 C2-3620-PW-086 MIN. 2M FILTER CONTROL PANEL SLOPE MIN. 1% SLOPE NOTES: 1. DISCHARGE WARNING HORN & STROBE LOCATED IN CONCENTRATE STORAGE AREA SLOPE DRUM SLOPE NOTE 1 MIN. 1% SLOPE MIN. 6.5% MIN. 1% MIN. 1% HYDRAULIC PUMP OIL COOLER FAN FLOOR DRAIN REFERENCE VENDOR DRAWINGS OIL HEATER VENDOR FILTER HYDRAULIC POWER UNIT MISMATCH OP/CL FAULT FAULT 3620-DR-1010-C1B-4"-N 3620-OLL-1044-S1A-2"-N V V V V 3610-SL-1642-C1B-6"-N SIZE: C2-3620-ST-624 CU CONCENTRATE FILTER NO. 2 DISCHARGE CHUTE V 3610-SL-1641-C1B-6"-N 3620-SL-1636-R1A-8"-N 3610-SL-1639-C1B-6"-N 3620-SL-1636-R1A-8"-N V V 3620-SL-1592-C1B-6"-N V SIZE: C2-3620-ST-626 CU CONCENTRATE FILTER NO. 2 DISCHARGE CHUTE V 3610-SL-1640-C1B-6"-N SIZE: C2-3620-ZM-075 CU CONCENTRATE FILTER NO.2 MUFFLER 3620-OLL-1045-S1A-1/2"-N SIZE: C2-3620-CO-502 CU CONCENTRATE FILTER NO. 2 CONTROL PANEL 3620-AP-1275-C1A-4"-N SIZE: C2-3620-ST-625 CU CONCENTRATE FILTER NO. 2 DISCHARGE CHUTE 3610-SL-1639-C1B-10"-N 3620-AI-1026-G1A-2"-N SIZE: C2-3620-ST-628 FILTER NO. 2 HYDRAULIC CONTAINMENT DUCT SIZE: C2-3620-HY-502 CU CONCENTRATE FILTER NO. 2 HYDRAULIC UNIT 3620-WF-1445-C1A-2"-N 3620-SL-1637-R1A-6"-N 3620-SL-1621-R1B-8"-N SIZE: MATERIAL: MOTOR: C2-3620-FL-002 CU CONCENTRATE FILTER NO. 2 3620-SL-1595-C1B-10"-N 3620-AHP-1011-C1G-3"-N 3620-AP-1314-C1A-4"-N V SIZE: MATERIAL: CAPACITY: TRIM: C2-3620-TK-045 AIR RELEASE TANK NO.2 V V FC V V C2-3620-ST-626 1-1/2" C2-3620-ST-625 C2-3620-CO-502 C2-3620-HY-502 C2-3620-ST-624 C2-3620-ST-628 1-1/2" 8"x6" C2-3620-FL-002 C2-3620-ZM-075 6"x4" 10"x6" C2-3620-TK-045 3620 01205 XV + 1-1/2" 1-1/2" 3620 01203 XA + 8"x6" V 2"x1/2" AG KM LT ISSUED FOR CLIENT REVIEW 22-Dec-11 B RP ISSUED FOR COMBINED REVIEW 30-Jun-11 A 12/22/2011 K. MUNDY A. GUNSON A. REGNAULT L. TAMELIN 12/22/2011 2:49:40 PM WBS: 3620 B PIPING AND INSTRUMENTATION DIAGRAM CONCENTRATE TANKS AND FILTERING 3600-25J-012 CU CONCENTRATE FILTER NO. 2 3620-WR-2014-C1A-1-1/2"-N 3610-SL-1643-C1B-4"-N 3620-SL-1646-C1B-4"-N 3620-WR-1922-C1A-6"-N D 4 F B A 3 2 1 5 6 8 E 7 C REV. APPROVED CHK. DES. REV. DATE REVISION DESCRIPTION CLIENT LEAD ENGINEER SCALE DRAWING NUMBER CHECK DESIGN CHECK DRAWING DESIGNED BY DRAWN BY APPROVAL DATE APPROVAL DATE APPROVED CHK. DES. REV. DATE REVISION DESCRIPTION REFERENCE DRAWING No. 1:100 0 1:200 5m 10m 0 5m 10m 15m 20m 1:500 10m 0 20m 30m 40m 50m 1:1000 0 100m 50m 1:20 0 0.5m 1m 1.5m 2m 0 1:25 0.5m 1m 1.5m 1:33 1/3 2.5m 2m 0 1m 2m 3m 0 1:50 1m 2m 3m 4m 5m CAD FILE NAME: P:0CAD000SPEM** MODEL UPDATED: DWG. FILE UPDATED: MANUAL CHANGES MADE: YES NO YES NO YES NO PROJECT MANAGER ENGINEERING MANAGER AREA PROJECTENGINEER REFERENCE DRAWINGS SAFETY SHARE: APPROVAL DATE CONTRACT NO. SAFETY SHARE : BA6CVA1.IGR NOTICE: THIS DRAWING HAS NOT BEEN PUBLISHED AND IS THE SOLE PROPERTY OF FLUOR AND IS LENT TO THE BORROWER FOR THEIR CONFIDENTIAL USE ONLY, AND IN CONSIDERATION OF THE LOAN OF THIS DRAWING, THE BORROWER PROMISES AND AGREES TO RETURN IT UPON REQUEST AND AGREES THAT IT WILL NOT BE REPRODUCED, COPIED LENT OR OTHERWISE DISPOSED OF DIRECTLY OR INDIRECTLY, NOR USED FOR ANY OTHER PURPOSE OTHER THAN WHICH IT IS FURNISHED. NONE Apr 2011 240K-C2- VENDOR
  • 213.
    D 4 F B A 3 2 1 5 68 E 7 C REV. APPROVED CHK. DES. REV. DATE REVISION DESCRIPTION CLIENT LEAD ENGINEER SCALE DRAWING NUMBER CHECK DESIGN CHECK DRAWING DESIGNED BY DRAWN BY APPROVAL DATE APPROVAL DATE APPROVED CHK. DES. REV. DATE REVISION DESCRIPTION REFERENCE DRAWING No. 1:100 0 1:200 5m 10m 0 5m 10m 15m 20m 1:500 10m 0 20m 30m 40m 50m 1:1000 0 100m 50m 1:20 0 0.5m 1m 1.5m 2m 0 1:25 0.5m 1m 1.5m 1:33 1/3 2.5m 2m 0 1m 2m 3m 0 1:50 1m 2m 3m 4m 5m CAD FILE NAME: P:0CAD000SPEM** MODEL UPDATED: DWG. FILE UPDATED: MANUAL CHANGES MADE: YES NO YES NO YES NO PROJECT MANAGER ENGINEERING MANAGER AREA PROJECTENGINEER REFERENCE DRAWINGS SAFETY SHARE: APPROVAL DATE CONTRACT NO. SAFETY SHARE : BA6CVA1.IGR NOTICE: THIS DRAWING HAS NOT BEEN PUBLISHED AND IS THE SOLE PROPERTY OF FLUOR AND IS LENT TO THE BORROWER FOR THEIR CONFIDENTIAL USE ONLY, AND IN CONSIDERATION OF THE LOAN OF THIS DRAWING, THE BORROWER PROMISES AND AGREES TO RETURN IT UPON REQUEST AND AGREES THAT IT WILL NOT BE REPRODUCED, COPIED LENT OR OTHERWISE DISPOSED OF DIRECTLY OR INDIRECTLY, NOR USED FOR ANY OTHER PURPOSE OTHER THAN WHICH IT IS FURNISHED. NONE Apr 2011 240K-C2- OIL HEATER 6"x4" C2-3620-ST-637 HYDRAULIC PUMP 1-1/2" V 3620 01304 HSL OIL COOLER FAN SLOPE REFERENCE VENDOR DRAWINGS MIN. 2M SLOPE 2"x1/2" SLOPE VENDOR SLOPE C2-3620-TK-053 C2-3620-ZM-076 MIN. 1% 3620 01302 WE 3620 01305 XV + SLOPE 3620 01302 WIT 8"x6" C2-3620-FL-003 FLOOR DRAIN MIN. 1% C2-3620-CO-503 8"x6" 3620 01301 PIT MIN. 1% C2-3620-ST-633 C2-3620-HY-503 MIN. 6.5% C2-3620-ST-631 3620 01303 XA + NOTES: 1. DISCHARGE WARNING HORN & STROBE LOCATED IN CONCENTRATE STORAGE AREA DRUM MIN. 1% 3620 01303 XL C2-3620-ST-632 FILTER CONTROL PANEL 1-1/2" VENDOR NOTE 1 1-1/2" 10"x6" FILTER HYDRAULIC POWER UNIT 1-1/2" CLOTH WASH WATER CU CONC. FILTER NO.3 CLOTH WASH PUMP, 2142 3600-25J-006 MANIFOLD FLUSH WATER CU CONC. FILTER NO.3 MANIFOLD FLUSH PUMP, 2151 3600-25J-014 CU CONC. FILTER FEED CU CONC. FILTER NO.3 FEED PUMP, C2-3620-PP-066 2168 3600-25J-008 CU FILTER DISCHARGE CONCENTRATE STORAGE 2302 3600-25J-017 PLANT AIR CU CONC. FILTER NO.3 DRYING AIR RECEIVER, 2160 3600-25J-011 HIGH PRESSURE AIR CU CONC. FILTER NO.3 PRESSING AIR RECEIVER, 2158 3600-25J-011 INSTRUMENT AIR 2573 3900-25J-022 C2-3620-VS-043 C2-3620-PW-087 C2-3620-VS-053 C2-3620-PW-097 3620-AP-1276-C1A-4"-N 3620-OLL-1047-S1A-1/2"-N 3620-DR-1011-C1B-4"-N 3620-SL-1653-C1B-6"-N V V V SIZE: C2-3620-ST-632 CU CONCENTRATE FILTER NO. 3 DISCHARGE CHUTE V V SIZE: C2-3620-ZM-076 CU CONCENTRATE FILTER NO. 3 MUFFLER V SIZE: MATERIAL: MOTOR: C2-3620-FL-003 CU CONCENTRATE FILTER NO. 3 SIZE: C2-3620-ST-637 FILTER NO.3 HYDRAULIC CONTAINMENT DUCT V 3620-SL-1652-C1B-6"-N SIZE: MATERIAL: CAPACITY: TRIM:C1B C2-3620-TK-053 AIR RELEASE TANK NO.3 V 3620-WF-1446-C1A-2"-N SIZE: C2-3620-HY-503 CU CONCENTRATE FILTER NO. 3 HYDRAULIC UNIT 3620-AI-1025-G1A-2"-N 3620-SL-1593-C1B-6"-N V SIZE: C2-3620-CO-503 CU CONCENTRATE FILTER NO. 3 CONTROL PANEL 3620-SL-1651-C1B-10"-N 3620-SL-1596-C1B-10"-N SIZE: C2-3620-ST-631 CU CONCENTRATE FILTER NO. 3 DISCHARGE CHUTE 3620-SL-1654-C1B-6"-N SIZE: C2-3620-ST-633 CU CONCENTRATE FILTER NO. 3 DISCHARGE CHUTE V 3620-SL-1651-C1B-6"-N V 3620-AHP-1012-C1G-3"-N 3620-SL-1622-R1B-8"-N 3620-AP-1315-C1A-4"-N 3620-SL-1649-R1A-6"-N FILTER FEED CONTROL, C2-3610-PP-066 2845 3600-25J-008 AG KM LT ISSUED FOR CLIENT REVIEW 22-Dec-11 B RP ISSUED FOR COMBINED REVIEW 30-Jun-11 A 12/22/2011 K. MUNDY A. GUNSON A. REGNAULT L. TAMELIN 12/22/2011 2:49:03 PM WBS: 3620 B PIPING AND INSTRUMENTATION DIAGRAM CONCENTRATE TANKS AND FILTERING 3600-25J-013 CU CONCENTRATE FILTER NO. 3 3620 01305 ZS 3620 01305 XA OP/CL 3620 01381 II 3620 01381 XA 3620 01381 HS FAULT J/SP 3620 01382 II 3620 01382 XA 3620 01382 HS FAULT J/SP CU FILTRATE CONC. CLARIFIER FEED LAUNDER, C2-3610-LA-009 3354 3600-25J-003 CU FILTRATE CONC. CLARIFIER FEED LAUNDER, C2-3610-LA-009 3355 3600-25J-003 MUFFLER DISCHARGE CONC. CLARIFIER FEED LAUNDER, C2-3610-LA-009 3356 3600-25J-003 V MISMATCH FC V V 3620 01306 A WE 3620 01306 B WE 3620 01306 A WT 3620 01306 B WT 3620 01306 A WI 3620 01306 B WI 3620-WR-2015-C1A-1-1/2"-N 3620-SL-1655-C1B-4"-N 3620-SL-1658-C1B-4"-N 3620-WR-1923-C1A-6"-N FILTER DRAIN CONTENTS CU CONC. FILTER AREA SPILLAGE SUMP 2572 3600-25J-006 3620-SL-1648-R1A-8"-N 3620-OLL-1046-S1A-2"-N 3620-SL-1648-R1A-8"-N VENDOR
  • 214.
    T1 T1 T1 T1 3620 01484 II 3620 01484 XA OP/CL 3620 01409 ZS 3620 01409 XA MISMATCH 3620 01401 A LI 3620 01401 LE 3620 01408 ZS OP/CL 3620 01408 XAMISMATCH 3620 01418 XA MISMATCH 3620 01418 ZS OP/CL 3620 01483 HS J/SP 3620 01483 II 3620 01483 XA 3620 01482 XA 3620 01482 HS J/SP 3620 01482 II 3620 01481 HS J/SP 3620 01427 ZS 3620 01427 XA 3620 01481 II 3620 01481 XA 3620 01417 ZS MISMATCH 3620 01417 XA 3620 01407 ZS 3620 01407 XA 3620 01401 LIC H, P2 L, P2 3620 01429 XA MISMATCH 3620 01429 ZS OP/CL 3620 01428 XV OP/CL 3620 01428 ZV MISMATCH 3620 01484 HS J/SP MISMATCH 3620 01437 XA 3620 01437 ZS 3620 01419 ZS 3620 01419 XA MISMATCH OP/CL 3620 01401 LT MISMATCH MANIFOLD FLUSH WATER CU CONC. FILTER NO. 2, C2-3620-FL-002 2150 3600-25J-012 CONC. CLARIFIER O/F CU CONC. CLARIFIER O/F TRANSFER PUMPS, 2147 3600-25J-004 MANIFOLD FLUSH WATER CU CONC. FILTER NO. 1, C2-3620-FL-001 2149 3600-25J-007 MANIFOLD FLUSH WATER CU CONC. FILTER NO. 3, C2-3620-FL-003 2151 3600-25J-013 FAULT OP/CL FAULT FAULT FAULT OP/CL OP/CL OP/CL C2-3610-PP-008/009 MISMATCH 3620-WR-1920-C1A-6"-N SIZE: MATERIAL: CAPACITY: TRIM: C2-3620-TK-043 CU CONCENTRATE MANIFOLD FLUSH TANK 4"x2" 3620-WR-1919-C1A-6"-N C2-3620-TK-043 3620 01401 LV + SIZE: MATERIAL: MOTOR: C2-3620-PW-086 CU CONCENTRATE FILTER NO.2 MANIFOLD FLUSH PUMP 3620-WR-1921-C1A-6"-N 3620 01427 XV + 3620-WR-1922-C1A-6"-N 3620 01407 XV + 3610-WR-1893-C1A-12"-N 12"x2" 3620-WR-1918-C1A-6"-N 6"x4" FI 3620 01419 XV + SIZE: MATERIAL: MOTOR: C2-3620-PW-087 CU CONCENTRATE FILTER NO.3 MANIFOLD FLUSH PUMP C2-3620-PW-086 3620 01417 XV + 6"x4" 6"x4" C2-3620-PW-085 SIZE: MATERIAL: MOTOR: C2-3620-PW-085 CU CONCENTRATE FILTER NO.1 MANIFOLD FLUSH PUMP 3620 01437 XV + 3620-WR-2008-C1A-6"-N 3620-WR-1923-C1A-6"-N 3620-WR-2009-C1A-6"-N 3620-WR-2010-C1A-6"-N 3620-WR-2011-C1A-6"-N 3620-WR-2012-C1A-6"-N C2-3620-PW-087 6"x4" C2-3620-PW-088 SIZE: MATERIAL: MOTOR: C2-3620-PW-088 CU CONCENTRATE FILTER MANIFOLD FLUSH PUMP (STANDBY) FI 3620 01409 XV + 3620 01429 XV + FI 3620 01408 ZV + 3620 01418 ZV + 3620 01428 ZV + 3620-WR-1916-C1A-4"-N TO FLOOR SUMP D 4 F B A 3 2 1 5 6 8 E 7 C REV. APPROVED CHK. DES. REV. DATE REVISION DESCRIPTION CLIENT LEAD ENGINEER SCALE DRAWING NUMBER CHECK DESIGN CHECK DRAWING DESIGNED BY DRAWN BY APPROVAL DATE APPROVAL DATE APPROVED CHK. DES. REV. DATE REVISION DESCRIPTION REFERENCE DRAWING No. 1:100 0 1:200 5m 10m 0 5m 10m 15m 20m 1:500 10m 0 20m 30m 40m 50m 1:1000 0 100m 50m 1:20 0 0.5m 1m 1.5m 2m 0 1:25 0.5m 1m 1.5m 1:33 1/3 2.5m 2m 0 1m 2m 3m 0 1:50 1m 2m 3m 4m 5m CAD FILE NAME: P:0CAD000SPEM** MODEL UPDATED: DWG. FILE UPDATED: MANUAL CHANGES MADE: YES NO YES NO YES NO PROJECT MANAGER ENGINEERING MANAGER AREA PROJECTENGINEER REFERENCE DRAWINGS SAFETY SHARE: APPROVAL DATE CONTRACT NO. SAFETY SHARE : BA6CVA1.IGR NOTICE: THIS DRAWING HAS NOT BEEN PUBLISHED AND IS THE SOLE PROPERTY OF FLUOR AND IS LENT TO THE BORROWER FOR THEIR CONFIDENTIAL USE ONLY, AND IN CONSIDERATION OF THE LOAN OF THIS DRAWING, THE BORROWER PROMISES AND AGREES TO RETURN IT UPON REQUEST AND AGREES THAT IT WILL NOT BE REPRODUCED, COPIED LENT OR OTHERWISE DISPOSED OF DIRECTLY OR INDIRECTLY, NOR USED FOR ANY OTHER PURPOSE OTHER THAN WHICH IT IS FURNISHED. NONE Apr 2011 240K-C2- AG KM LT ISSUED FOR CLIENT REVIEW 22-Dec-11 B RP ISSUED FOR COMBINED REVIEW 30-Jun-11 A 12/22/2011 K. MUNDY A. GUNSON A. REGNAULT L. TAMELIN 12/22/2011 2:12:20 PM WBS: 3620 B PIPING AND INSTRUMENTATION DIAGRAM CONCENTRATE TANKS AND FILTERING 3600-25J-014 CU FILTER ANCILLARIES - SHEET 3 OF 3
  • 215.
    RHS A-B 3630 01702 HSS 3630 01705 ZSH A-B 3630 01701 HSS 3630 01704 ZSH 3630 01705 ZAH RHS 3630 01704 ZAH 3630 01702 HSA 3630 01701 HSA 3630 01715 ZS 3630 01714 XL 3630 01714 XL PROCEED 3630 01714 XL 3630 01781 II 3630 01781 XA 3630 01703 A SE 3630 01703 A ST 3630 01781 HS SLOW 3630 01716 LE 3630 01716 LI 3630 01716 LIT 3630 01786 XA 3630 01786 II 3630 01786 HS J/SP 3630 01708 ZSL 3630 01708 ZSH 3630 01708 HS UP/DN 3630 01708 ZI 3630 01706 LSH 3630 01706 LAH P1 3630 01719 LE 3630 01719 LT 3630 01719A LI 3630 01720 LT 3630 01720 A LI 3630 01720 LE 3630 01720 LI 3630 01719 LI 3630 01782 XA 3630 01713 SI 3630 01711 HS J/SP 3630 01782 UA H, P2 3630 01711 TI 3630 01709 LAL 3630 01712 PDI FAULT (J) JF/JR SP STOP STOP LIGHT H, P2 HH, P1 L,P2 UP/DN HYDRAULIC DRIVE SEE VENDOR DRAWING FAULT P2 A-B A-B P1 A,B LHS P1 A,B RHS RHS A-B A-B LHS WIND SCREEN FRONT END LOADER CU CONCENTRATE LOADING CONCENTRATE EMERGENCY STORAGE 43,000T C2-3630-BN-041 C2-3630-ZM-065 C2-3630-ST-067 C2-3630-PP-037 C2-3630-CV-044 C2-3630-ST-097 D 4 F B A 3 2 1 5 6 8 E 7 C REV. APPROVED CHK. DES. REV. DATE REVISION DESCRIPTION CLIENT LEAD ENGINEER SCALE DRAWING NUMBER CHECK DESIGN CHECK DRAWING DESIGNED BY DRAWN BY APPROVAL DATE APPROVAL DATE APPROVED CHK. DES. REV. DATE REVISION DESCRIPTION REFERENCE DRAWING No. 1:100 0 1:200 5m 10m 0 5m 10m 15m 20m 1:500 10m 0 20m 30m 40m 50m 1:1000 0 100m 50m 1:20 0 0.5m 1m 1.5m 2m 0 1:25 0.5m 1m 1.5m 1:33 1/3 2.5m 2m 0 1m 2m 3m 0 1:50 1m 2m 3m 4m 5m CAD FILE NAME: P:0CAD000SPEM** MODEL UPDATED: DWG. FILE UPDATED: MANUAL CHANGES MADE: YES NO YES NO YES NO PROJECT MANAGER ENGINEERING MANAGER AREA PROJECTENGINEER REFERENCE DRAWINGS SAFETY SHARE: APPROVAL DATE CONTRACT NO. SAFETY SHARE : BA6CVA1.IGR NOTICE: THIS DRAWING HAS NOT BEEN PUBLISHED AND IS THE SOLE PROPERTY OF FLUOR AND IS LENT TO THE BORROWER FOR THEIR CONFIDENTIAL USE ONLY, AND IN CONSIDERATION OF THE LOAN OF THIS DRAWING, THE BORROWER PROMISES AND AGREES TO RETURN IT UPON REQUEST AND AGREES THAT IT WILL NOT BE REPRODUCED, COPIED LENT OR OTHERWISE DISPOSED OF DIRECTLY OR INDIRECTLY, NOR USED FOR ANY OTHER PURPOSE OTHER THAN WHICH IT IS FURNISHED. NONE Apr 2011 240K-C2- SIZE: MATERIAL: MOTOR: C2-3630-PP-037 CONCENTRATE WASH LOADING STATION SUMP PUMP 15 T LHS LHS 3630 01705 ZSHH 3630 01704 ZSHH CU FILTER DISCHARGE CU CONC. FILTER NO. 1 C2-3610-FL-001 2296 3600-25J-007 CU FILTER DISCHARGE CU CONC. FILTER NO. 2 C2-3610-FL-002 2301 3600-25J-012 CU FILTER DISCHARGE CU CONC. FILTER NO. 3 C2-3610-FL-003 2302 3600-25J-013 FRESH WATER 2303 CONC. LOADING SUMP CU CONC. THICKENER FEED BOX, C2-3610-BX-001 2304 3600-25J-001 T8 T1 SIZE: C2-3630-ST-067 TRUCK LOADOUT CONVEYOR HEAD CHUTE SIZE: MOTOR: C2-3630-ZM-065 CU CONCENTRATE LOADING SPOUT SIZE: MOTOR: C2-3630-CV-044 TRUCK LOADOUT CONVEYOR (AFD) V SIZE: C2-3630-ST-097 CONCENTRATE LOADOUT FEED HOPPER 3630-WF-1200-C1A-2"-N V ES V SIZE: C2-3630-BN-041 CONCENTRATE WEIGH BIN V ES 3630 01703 B SE 3630 01703 B ST 3630 01703 B SI 3630 01703 SI ES 3630 01703 SDI H, P2 3630 01710 WQI 3630 01710 WIC H, P2 3630 01784 II C2-3630-CV-090 3630 01784 XA C2-3630-DC-641 3630 01783 XA 3630 01783 HS TO ATMOSPHERE 3630 01783 II 3630 01785 II 3630 01785 XA 3630 01785 HS FAULT J/SP FAULT FAULT M J/SP J/SP 3630 01784 HS C2-3630-ZV-090 T1 T1 FROM DUST COLLECTION POINTS C2-3630-FA-641 C2-3630-ST-139 AG KM LT ISSUED FOR CLIENT REVIEW 22-Dec-11 B RP ISSUED FOR COMBINED REVIEW 30-Jun-11 A 12/22/2011 K. MUNDY A. GUNSON A. REGNAULT L. TAMELIN 12/22/2011 2:13:25 PM WBS: 3630 B PIPING AND INSTRUMENTATION DIAGRAM CONCENTRATE STORAGE 3600-25J-017 CU CONCENTRATE LOADOUT SIZE: C2-3630-ST-139 LOADOUT FEED HOPPER SKIRTS SIZE: MOTOR: C2-3630-FA-641 CONCENTRATE STORAGE AREA DUST COLLECTOR EXHAUST FAN SIZE: C2-3630-DC-641 CONCENTRATE STORAGE AREA DUST COLLECTOR SIZE: MOTOR: C2-3630-CV-090 CONCENTRATE STORAGE AREA DUST COLLECTOR SCREW CONVEYOR SIZE: MOTOR: C2-3630-ZV-090 CONCENTRATE STORAGE AREA DUST COLLECTOR ROTARY VALVE 15 T 15 T 15 T FAULT 15 T 15 T NOTE 1 NOTES: 1. CONTRACTOR SUPPLY. 3630 01705 ZAHH 3630 01704 ZAHH P1 P2 P1 P2 3630 01715 XA OP/CL MISMATCH 3630-SL-1579-C1B-4"-N 3630-WF-1447-C1B-1"-N 3630-WF-1448-C1A-2"-N 4090 3630 01710 WE DUCTING
  • 216.
    VENDOR 3710 00111 HS OP/CL L/R 3710 00101 HS OP/CL L/R 3710 00102 HIC 3710 00101 XA M M M M 3710 00131 HS OP/CL L/R 3710 00131 ZS 3710 00121 HS OP/CL L/R 3710 00121 ZS 3710 00101 ZS 3710 00131 XA 3710 00121 XA 3710 00111 XA 3710 00111 ZS PROCESS WATER TAILING THICKENERNO. 3, C2-3710-TK-029 2852 3700-25J-006 TAILING TAILING THICKENER NO. 3, C2-3710-TK-029 2378 3700-25J-006 TAILING TAILING THICKENER NO. 2, C2-3710-TK-012 2314 3700-25J-004 SUMP CONTENTS NAHS AREA SUMP PUMP, C2-3510-PP-165 2311 3500-25J-035 SUMP CONTENTS GRINDING AREA SUMP PUMP, C2-3310-PP-103 1317 3300-25J-022 MILK OF LIME LIME DISTRIBUTION PUMPS, C2-3920-PP-093/094 3301 3900-25J-012 SCAVENGER TAILING SCAV. TAILING ROW NO. 6 SAMPLER, C2-3410-SA-602 1096 3400-25J-017 TAIL. FLOC. SUMP CONT. TAILING FLOCCULANT AREA SUMP PUMP, C2-3710-PP-159 2312 3700-25J-014 PROCESS WATER TAILING THICKENER FLOCCULANT SYSTEM 2317 3700-25J-014 PROCESS WATER TAILING THICKENER NO. 2, C2-3710-TK-012 2320 3700-25J-004 PROCESS WATER TAILING THICKENER NO. 4, C2-3710-TK-030 2322 3700-25J-011 SCAVENGER TAILING SCAV. TAILING ROW NO. 3 SAMPLER, C2-3410-SA-302 1189 3400-25J-012 SCAVENGER TAILING SCAV. TAILING ROW NO. 2 SAMPLER, C2-3410-SA-202 1051 3400-25J-004 SCAVENGER TAILING SCAV. TAILING ROW NO. 5 SAMPLER, C2-3410-SA-502 1095 3400-25J-017 CLARIFIER O/F CONC. CLARIFIER O/F PUMPS, C2-3610-PP-002/009 2291 3600-25J-004 SCAVENGER TAILING SCAV. TAILING ROW NO. 1 SAMPLER, C2-3410-SA-102 1050 3400-25J-004 TAILING TAILING THICKENER NO. 4, C2-3710-TK-030 2316 3700-25J-011 PROCESS WATER RECYCLE WATER COLLECTION POND, 2318 3700-25J-013 SCAVENGER TAILING SCAV. TAILING ROW NO. 4 SAMPLER, C2-3410-SA-402 1190 3400-25J-012 REAGENT AREA SUMP PUMP, C2-3910-PP-149 2307 3900-25J-001 C2-3410-SA-531 NOTE 1 MISMATCH C2-3410-SA-534 MISMATCH OP/CL NOTE 1 NOTE 1 NOTES: 1. MINIMUM DISTANCE TO BE MAINTAINED BETWEEN VALVE AND FITTINGS OF FLANGES. NOTE 1 OP/CL MISMATCH OP/CL C2-3710-PD-001 OP/CL MISMATCH 3410-SL-1666-R1B-48"-N 20"x16" SIZE: C2-3710-LA-001 TAILING COLLECTION LAUNDER NO.1 3710-SL-1676-R1B-60"-N 3710-WR-1926-C1A-6"-N 3710-WR-1930-C1A-1-1/2"-N 3710-WR-1927-C1A-2"-N 3410-SL-1667-R1A-26"-N 24"x20" 3710-RE-1012-C1A-4"-N 3410-SL-1661-R1B-48"-N 3710-SL-1681-R1B-60"-N ES ES 3710-WR-1929-C1A-16"-N ES ES 2"x1-1/2" 3710-SL-1677-R1B-16"-N 3410-SL-1662-R1B-48"-N 3710 00111 XV + 24"x16" 3710-WR-1933-C1A-8"-N 3710 00131 XV + C2-3710-SA-001 3410-SL-1391-R1A-6"-N 3710-WR-1931-C1A-1-1/2"-N 3410-SL-1664-R1B-48"-N 3710-SL-1679-R1B-60"-N 3710-WR-1934-C1A-8"-N 3710 00121 XV + 3710-SL-1680-R1B-60"-N 3410-SL-1665-R1B-48"-N 3710-WR-1932-C1A-8"-N 3610-WR-1912-C1A-12"-N SIZE: MATERIAL: CAPACITY: TRIM: C2-3710-DI-002 TAILING THICKENER FEED DISTRIBUTOR 3910-DR-1012-C1B-3"-N 3930-WR-1211-C1A-24"-N 3710-WR-1935-C1A-8"-N SIZE: C2-3710-AZ-001 PLANT TAILING-COMPOSITE ANALYZER C2-3710-AZ-001 3710-SL-1690-C1B-8"-N 3710-RL-1030-C1B-1-1/2"-N SIZE: C2-3710-SA-001 PLANT TAILING-COMPOSITE SAMPLER C2-3710-DI-002 3410-SL-1392-R1A-26"-N C2-3710-LA-001 3710-SL-1682-R1B-60"-N 3710-WR-1924-C1A-20"-N 3710 00101 XV + 3510-RS-1039-S1B-3"-N 3310-DR-1006-C1B-6"-N 3410-SL-1663-R1B-48"-N AG KM LT ISSUED FOR CLIENT REVIEW 19-Dec-11 B RP NOT USED 05-Jul-11 A 12/19/2011 K. MUNDY A. GUNSON A. REGNAULT L. TAMELIN 12/19/2011 6:04:45 PM WBS: 3710 B PIPING AND INSTRUMENTATION DIAGRAM TAILING THICKENING 3700-25J-001 FLOTATION TAILING AND SAMPLING D 4 F B A 3 2 1 5 6 8 E 7 C REV. APPROVED CHK. DES. REV. DATE REVISION DESCRIPTION CLIENT LEAD ENGINEER SCALE DRAWING NUMBER CHECK DESIGN CHECK DRAWING DESIGNED BY DRAWN BY APPROVAL DATE APPROVAL DATE APPROVED CHK. DES. REV. DATE REVISION DESCRIPTION REFERENCE DRAWING No. 1:100 0 1:200 5m 10m 0 5m 10m 15m 20m 1:500 10m 0 20m 30m 40m 50m 1:1000 0 100m 50m 1:20 0 0.5m 1m 1.5m 2m 0 1:25 0.5m 1m 1.5m 1:33 1/3 2.5m 2m 0 1m 2m 3m 0 1:50 1m 2m 3m 4m 5m CAD FILE NAME: P:0CAD000SPEM** MODEL UPDATED: DWG. FILE UPDATED: MANUAL CHANGES MADE: YES NO YES NO YES NO PROJECT MANAGER ENGINEERING MANAGER AREA PROJECTENGINEER REFERENCE DRAWINGS SAFETY SHARE: APPROVAL DATE CONTRACT NO. SAFETY SHARE : BA6CVA1.IGR NOTICE: THIS DRAWING HAS NOT BEEN PUBLISHED AND IS THE SOLE PROPERTY OF FLUOR AND IS LENT TO THE BORROWER FOR THEIR CONFIDENTIAL USE ONLY, AND IN CONSIDERATION OF THE LOAN OF THIS DRAWING, THE BORROWER PROMISES AND AGREES TO RETURN IT UPON REQUEST AND AGREES THAT IT WILL NOT BE REPRODUCED, COPIED LENT OR OTHERWISE DISPOSED OF DIRECTLY OR INDIRECTLY, NOR USED FOR ANY OTHER PURPOSE OTHER THAN WHICH IT IS FURNISHED. NONE Apr 2011 240K-C2- 3710 00102 HV + 3710-WR-1925-C1A-1-1/2"-N 3710-SL-1678-R1B- - PROCESS WATER TAILING COLLECTION BOX, C2-3810-BX-102 3700 3800-25J-001 3710-WR-1968-C1A-16"-N 3710-WR-1928-C1A-1-1/2"-N PROCESS WATER 2890 3900-25J-015 TAILING TAILING THICKENER NO. 1, C2-3710-TK-011 3701 3700-25J-002 SUMP CONTENTS TAILING AREA SUMP PUMP, C2-3710-PP-130 2766 3700-25J-002 PROCESS WATER TAILING THICKENER NO. 1, C2-3710-TK-011 3702 3700-25J-002 3710 00103 HV + FC 3710 00103 HY 3710 00103 HIC AI p D CLEANER SCAV. TAILING CLEANER INSTREAM ANALYZER, C2-3410-AZ-509 2732 3400-25J-053 FI FI FI FI 3410-SL-1392-R1A-6"-N EMERGENCY SUMP RETURN REGRIND EMERGENCY O/F SUMP PUMP, C2-3420-PP-539 3812 3400-25J-032 FLOOR SPILL GRINDING BASEMENT EMERGENCY SPILL 3927 3300-25J-022 CLEANER SCAV. TAILING CLEANER SCAVENGER TAILING SAMPLER NO. 2, 2751 3400-25J-048 CLEANER SCAV. TAILING CLEANER SCAVENGER TAILING SAMPLER NO. 1, 2750 3400-25J-048 CLEANER SCAV. TAILING CLEANER INSTREAM ANALYZER, C2-3410-AZ-509 2733 3400-25J-053 3710-SL- -HOK-48"-N 3710-SL-1269-C1B-6"-N
  • 217.
    T8 T3 P.O NO.: VENDOR DWGNO.: VENDOR: 3710 00203 PIT 3710 00203 PIC 3710 00205 PI 3710 00201 FIC 3710 00201 FY 3710 00243 XA 3710 00282 II 3710 00228 ZS OP/CL 3710 00212 XA 3710 00202 LE 3710 00236 XA 3710 00204 FIT 3710 00229 ZS 3710 00229 XA M 3710 00281 II 3710 00238 ZS 3710 00212 ZS 3710 00209 XA 3710 00282 XA FAULT OP/CL 3710 00207 XA OP/CL 3710 00209 ZS 3710 00202 LI H, P2 HH, P1 L, P2 3710 00201 DIC 3710 00238 XA 3710 00237 ZS 3710 00207 ZS 3710 00206 XA 3710 00237 XA 3710 00239 XA 3710 00204 FI L, P2 LL, P1 3710 00219 XA OP/CL 3710 00219 ZS 3710 00206 ZS 3710 00281 HS J/SP 3710 00208 XA 3710 00208 ZS 3710 00217 ZS 3710 00217 XA OP/CL 3710 00218 ZS 3710 00218 XA 3710 00226 XA 3710 00216 XA 3710 00216 ZS OP/CL 3710 00228 XA 3710 00226 ZS 3710 00227 XA 3710 00227 ZS OP/CL 3710 00239 ZS 3710 00236 ZS OP/CL 3710 00205 PIT 3710 00222 XA 3710 00222 ZS OP/CL 3710 00223 ZS 3710 00223 XA 3710 00213 XA 3710 00213 ZS OP/CL 3710 00201 WQI MASS FLOW 3710 00281 XA 3710 00201 FIT 3710 00202 LIT FLOCCULANT TAILING THICKENER FLOCCULANT SYSTEM 2325 3700-25J-014 TAILING THICKENER U/F THICKENER NO.1 U/F RECYCLE, C2 3710-PP-027 2326 3700-25J-003 TAILING THICKENER O/F RECYCLE WATER COLLECTION POND, 2329 3700-25J-013 TAILING THICKENER U/F TAILING THICKENER NO.1 RECYCLE PUMP, 2330 3700-25J-003 TAILING THICKENER U/F TAILING COLLECTION BOX, C2-3810-BX-102 2369 3800-25J-001 OP/CL OP/CL OP/CL OP/CL OP/CL OP/CL OP/CL OP/CL OP/CL OP/CL FAULT H, P2 L, P2 L, P2 MIN. MIN. L, P2 LL, P2 AFD MIN. SELECT C2-3710-PD-001 C2-3710-PP-027 24"x16" 3710 00229 XV + 3710 00238 XV + C2-3710-TM-011 3710 00222 XV + 3710-WR-1942-C1A-1-1/2"-N FI FI C1A 3710-SL-1683-R1B-24"-N 3710-SL-1686-R1B-24"-N SIZE: C2-3710-TK-011 TAILING THICKENER NO.1 TANK 3710-WR-1938-C1A-8"-N 3710-SL-1688-R1B-16"-N 3710-SL-1685-R1B-24"-N FI 3710-SL-1693-R1B-16"-N 3710 00226 XV + 3710-WR-1937-C1A-1-1/2"-N SIZE: MATERIAL: MOTOR: C2-3710-PP-030 TAILING THICKENER NO.1 U/F PUMP (AFD) 3710-SL-1679-R1B-60"-N 3710-WR-1939-C1A-2"-N SIZE: MATERIAL: MOTOR: C2-3710-TM-011 TAILING THICKENER NO.1 MECHANISM 3710-SL-1690-C1B-8"-N R1B 3710-RE-1001-C1A-4"-N 3710-WR-1941-C1A-8"-N FI FI 3710 00216 XV + C2-3710-PP-130 C2-3710-PP-030 3710-WR-1001-C1A-48"-N 3710-WR-1940-C1A-8"-N FI FI FI 24"x16" 3"x1-1/2" 3710 00236 XV + 3710-WG-1015-C1A-2"-N 3710-SL-1684-R1B-24"-N 3710 00239 XV + C2-3710-TK-011 3710 00209 XV + 3710 00223 XV + 3710 00201 FE + 3710 00213 XV + 3710 00218 XV + 18"x16" 3710 00208 XV + 3"x2" 3710 00228 XV + 3710 00207 XV + 18"x16" 24"x16" 3710 00219 XV + 3710 00227 XV + 3710 00237 XV + 3710 00212 XV + 24"x16" 3710 00206 XV + 3710 00217 XV + 2"x1-1/2" AG KM LT ISSUED FOR CLIENT REVIEW 19-Dec-11 B RP NOT USED 05-Jul-11 A 12/19/2011 K. MUNDY A. GUNSON A. REGNAULT L. TAMELIN 12/19/2011 5:01:08 PM WBS: 3710 B PIPING AND INSTRUMENTATION DIAGRAM TAILING THICKENING 3700-25J-002 TAILING THICKENER NO. 1 D 4 F B A 3 2 1 5 6 8 E 7 C REV. APPROVED CHK. DES. REV. DATE REVISION DESCRIPTION CLIENT LEAD ENGINEER SCALE DRAWING NUMBER CHECK DESIGN CHECK DRAWING DESIGNED BY DRAWN BY APPROVAL DATE APPROVAL DATE APPROVED CHK. DES. REV. DATE REVISION DESCRIPTION REFERENCE DRAWING No. 1:100 0 1:200 5m 10m 0 5m 10m 15m 20m 1:500 10m 0 20m 30m 40m 50m 1:1000 0 100m 50m 1:20 0 0.5m 1m 1.5m 2m 0 1:25 0.5m 1m 1.5m 1:33 1/3 2.5m 2m 0 1m 2m 3m 0 1:50 1m 2m 3m 4m 5m CAD FILE NAME: P:0CAD000SPEM** MODEL UPDATED: DWG. FILE UPDATED: MANUAL CHANGES MADE: YES NO YES NO YES NO PROJECT MANAGER ENGINEERING MANAGER AREA PROJECTENGINEER REFERENCE DRAWINGS SAFETY SHARE: APPROVAL DATE CONTRACT NO. SAFETY SHARE : BA6CVA1.IGR NOTICE: THIS DRAWING HAS NOT BEEN PUBLISHED AND IS THE SOLE PROPERTY OF FLUOR AND IS LENT TO THE BORROWER FOR THEIR CONFIDENTIAL USE ONLY, AND IN CONSIDERATION OF THE LOAN OF THIS DRAWING, THE BORROWER PROMISES AND AGREES TO RETURN IT UPON REQUEST AND AGREES THAT IT WILL NOT BE REPRODUCED, COPIED LENT OR OTHERWISE DISPOSED OF DIRECTLY OR INDIRECTLY, NOR USED FOR ANY OTHER PURPOSE OTHER THAN WHICH IT IS FURNISHED. NONE Apr 2011 240K-C2- SUMP CONTENTS TAILING COLLECTION LAUNDER NO. 1, 2313 3700-25J-001 GLAND SEAL WATER 2950 3900-25J-023 FI FI FI FI FI FI FI FI NOTE 1 NOTE 1 NOTE 1 NOTE 1 NOTE 1 V NOTES: 1. MINIMUM DISTANCE 3710 00201 DIT 3710 00201 DX 3710 00201 DE 3710 00201 HY 3710-WR-1932-C1A-8"-N 3710-WR-1943-C1A-8"-N 3710-SL-1689-R1B-24"-N 3710-WR-1944-C1A-8"-N TAILING TAILING THICKENER FEED DISTRIBUTOR, C2-3710-DI-002 3701 3700-25J-001 C2-3710-LA-001 PROCESS WATER 3702 3700-25J-001 MISMATCH MISMATCH MISMATCH MISMATCH MISMATCH MISMATCH MISMATCH MISMATCH MISMATCH MISMATCH MISMATCH MISMATCH MISMATCH ? MISMATCH MISMATCH MISMATCH MISMATCH MISMATCH MISMATCH MISMATCH FI C2-3710-ZM-120 26"x24" 3710 00282 HS 3710 00243 XV + FI 3710 00243 ZS OP/CL M M 3710 00242 XV + 3710 00242 HS 3710 00242 ZS OP/CL L/R 3710 00242 XA MISMATCH OP/CL V3 ES C2-3710-PP-759 C2-3710-PW-068 SIZE: MATERIAL: MOTOR: C2-3710-PP-759 TAILING THICKENER U/F PUMP UNINSTALLED SPARE SIZE: MATERIAL: MOTOR: C2-3710-PW-068 MOBILE SITE DRAINAGE PUMP-DIESEL FI FI FI FI SIZE: MATERIAL: MOTOR: C2-3710-PP-130 TAILING AREA SUMP PUMP 3710 00204 FE + ES 3710-SL-1687-R1B-30"-N 8"
  • 218.
    T3 T3 T3 T3 3710 00324 FIT 3710 00324 FI L, P2 LL, P1 3710 00304 FI L,P2 LL, P1 3710 00315 PI 3710 00314 FIT 3710 00331 FIT 3710 00311 FIC 3710 00391 II M 3710 00382 II 3710 00321 FIC M 3710 00334 FIT 3710 00392 XA 3710 00314 FI L, P2 LL, P1 3710 00392 HS J/SP 3710 00335 PI 3710 00305 PI M 3710 00392 II 3710 00311 FIT M 3710 00391 XA 3710 00334 FI L, P2 LL, P1 M 3710 00321 FIT M 3710 00335 PIT 3710 00382 HS J/SP 3710 00331 FIC 3710 00325 PIT 3710 00381 II 3710 00304 FIT 3710 00325 PI M 3710 00381 HS J/SP 3710 00382 XA 3710 00315 PIT 3710 00305 PIT 3710 00301 FIT M 3710 00301 FIC 3710 00391 HS J/SP 3710 00381 XA L, P2 L, P2 L, P2 TAILING THICKENER U/F THICKENER NO.1 FEED WELL, C2-3710-TK-011 2326 3700-25J-002 TAILING THICKENER U/F THICKENER NO.1 U/F, C2-3710-TK-011 2330 3700-25J-002 TAILING THICKENER U/F THICKENER NO.2 FEED WELL, C2-3710-TK-012 2334 3700-25J-004 TAILING THICKENER U/F THICKENER NO.3 FEED WELL, C2-3710-TK-039 2335 3700-25J-006 TAILING THICKENER U/F THICKENER NO.4 FEED WELL, C2-3710-TK-040 2336 3700-25J-011 TAILING THICKENER U/F THICKENER NO.2 U/F, C2-3710-TK-012 2343 3700-25J-004 TAILING THICKENER U/F THICKENER NO.3 U/F, C2-3710-TK-029 2344 3700-25J-006 TAILING THICKENER U/F THICKENER NO.4 U/F, C2-3710-TK-030 2345 3700-25J-011 AFD AFD FAULT AFD FAULT FAULT AFD FAULT AG KM LT ISSUED FOR CLIENT REVIEW 19-Dec-11 B RP NOT USED 05-Jul-11 A 12/19/2011 K. MUNDY A.GUNSON A. REGNAULT L.TAMELIN 12/19/2011 6:11:41 PM WBS: 3710 B PIPING AND INSTRUMENTATION DIAGRAM TAILING THICKENING 3700-25J-003 TAILING THICKENER RECYCLE PUMPS SIZE: MATERIAL: MOTOR: C2-3710-PP-028 TAILING THICKENER NO. 2 RECYCLE PUMP ES 3710-SL-1688-R1B-16"-N 3710-WG-1095-C1A-2"-N 3710-SL-1694-R1B-16"-N SIZE: MATERIAL: MOTOR: C2-3710-PP-039 THICKENER NO. 4 RECYCLE PUMP 3710-SL-1715-R1B-16"-N 3710-SL-1708-R1B-16"-N SIZE: MATERIAL: MOTOR: C2-3710-PP-027 TAILING THICKENER NO. 1 RECYCLE PUMP 3710-SL-1693-R1B-16"-N ES 3710-SL-1700-R1B-16"-N 3710-SL-1691-R1B-16"-N SIZE: MATERIAL: MOTOR: C2-3710-PP-038 THICKENER NO. 3 RECYCLE PUMP ES 3710-WG-1096-C1A-2"-N ES 3710-SL-1692-R1B-16"-N C2-3710-PP-027 3"x2" 3"x2" 3"x2" 3"x2" 2"x1-1/4" 3710 00331 FE + 3710 00304 FE + C2-3710-PP-028 3710 00324 FE + 3710 00311 FE + 3710 00314 FE + 3710 00301 FE + 3710 00334 FE + 2"x1-1/4" 16"x12" 2"x1-1/4" 3710 00321 FE + 3"x2" C2-3710-PP-038 16"x12" 16"x14" 3"x2" 2"x1-1/4" 3"x2" 16"x14" 16"x14" 16"x12" 16"x14" 3"x2" 16"x12" 3710-WG-1093-C1A-2"-N 3610-WG-1094-C1A-2"-N 3710 00328 XV + 3710 00339 XV + 3710 00308 XV + 3710 00318 XV + C2-3710-PP-039 D 4 F B A 3 2 1 5 6 8 E 7 C REV. APPROVED CHK. DES. REV. DATE REVISION DESCRIPTION CLIENT LEAD ENGINEER SCALE DRAWING NUMBER CHECK DESIGN CHECK DRAWING DESIGNED BY DRAWN BY APPROVAL DATE APPROVAL DATE APPROVED CHK. DES. REV. DATE REVISION DESCRIPTION REFERENCE DRAWING No. 1:100 0 1:200 5m 10m 0 5m 10m 15m 20m 1:500 10m 0 20m 30m 40m 50m 1:1000 0 100m 50m 1:20 0 0.5m 1m 1.5m 2m 0 1:25 0.5m 1m 1.5m 1:33 1/3 2.5m 2m 0 1m 2m 3m 0 1:50 1m 2m 3m 4m 5m CAD FILE NAME: P:0CAD000SPEM** MODEL UPDATED: DWG. FILE UPDATED: MANUAL CHANGES MADE: YES NO YES NO YES NO PROJECT MANAGER ENGINEERING MANAGER AREA PROJECTENGINEER REFERENCE DRAWINGS SAFETY SHARE: APPROVAL DATE CONTRACT NO. SAFETY SHARE : BA6CVA1.IGR NOTICE: THIS DRAWING HAS NOT BEEN PUBLISHED AND IS THE SOLE PROPERTY OF FLUOR AND IS LENT TO THE BORROWER FOR THEIR CONFIDENTIAL USE ONLY, AND IN CONSIDERATION OF THE LOAN OF THIS DRAWING, THE BORROWER PROMISES AND AGREES TO RETURN IT UPON REQUEST AND AGREES THAT IT WILL NOT BE REPRODUCED, COPIED LENT OR OTHERWISE DISPOSED OF DIRECTLY OR INDIRECTLY, NOR USED FOR ANY OTHER PURPOSE OTHER THAN WHICH IT IS FURNISHED. NONE Apr 2011 240K-C2- 3710 00328 ZS 3710 00339 ZS 3710 00328 XA 3710 00339 XA OP/CL OP/CL MISMATCH MISMATCH 3710 00318 ZS 3710 00318 XA OP/CL MISMATCH 3710 00308 ZS 3710 00308 XA OP/CL MISMATCH GLAND SEAL WATER 3302 3900-25J-023 ES ES 8" FI 8" FI 8" FI 8" FI L,P2
  • 219.
    T3 P.O NO.: VENDOR DWGNO.: VENDOR: 3700-25J-304 3710 00423 XA MISMATCH 3710 00427 XA 3710 00423 ZS OP/CL 3710 00417 XA OP/CL 3710 00417 ZS 3710 00409 ZS MISMATCH 3710 00405 PI 3710 00408 ZS 3710 00408 XA 3710 00406 ZS 3710 00405 PIT 3710 00419 ZS OP/CL 3710 00419 XA 3710 00422 ZS OP/CL 3710 00412 ZS 3710 00406 XA MISMATCH 3710 00403 PIC 3710 00422 XA 3710 00412 XA 3710 00407 ZS OP/CL 3710 00403 PIT 3710 00401 FIC M 3710 00407 XA MISMATCH 3710 00401 FIT M 3710 00409 XA 3710 00436 ZS OP/CL 3710 00439 ZS 3710 00404 FIT 3710 00428 ZS OP/CL MISMATCH 3710 00404 FI L, P2 LL, P1 3710 00428 XA MISMATCH 3710 00426 XA 3710 00426 ZS 3710 00439 XA 3710 00482 XA FAULT 3710 00437 XA 3710 00482 II 3710 00437 ZS 3710 00482 HS 3710 00443 ZS MISMATCH 3710 00413 ZS OP/CL 3710 00438 XA 3710 00418 XA 3710 00443 XA 3710 00401 HY 3710 00438 ZS 3710 00413 XA MISMATCH 3710 00401 WQI MASS FLOW 3710 00418 ZS 3710 00401 DIC 3710 00401 FY 3710 00429 XA 3710 00416 ZS OP/CL 3710 00429 ZS 3710 00416 XA 3710 00436 XA MISMATCH 3710 00427 ZS MISMATCH 3710 00401 DE 3710 00401 DX 3710 00401 DIT 3710 00442 XA M 3710 00442 ZS 3710 B HS OP/CL L/R MISMATCH GLAND SEAL WATER 2951 3900-25J-023 FLOCCULANT FLOCCULANT METERING PUMP 2373 3700-25J-014 TAILING THICKENER U/F TAILING COLLECTION BOX, C2-3810-BX-102 2374 3800-25J-001 PROCESS WATER 2320 3700-25J-001 TAILING TAILING THICKENER FEED DISTRIBUTOR, C2-3710-DI-002 2314 3700-25J-001 TAILING THICKENER U/F THICKENER NO. 2 U/F RECYCLE, C2-3710-PP-028 2334 3700-25J-003 TAILING THICKENER U/F TAILING THICKENER NO.2 RECYCLE PUMP, 2343 3700-25J-003 TAILING THICKENER O/F RECYCLE WATER COLLECTION POND, 2348 3700-25J-013 OP/CL L, P2 L, P2 LL, P2 OP/CL OP/CL MIN. MIN. MIN. OP/CL OP/CL AFD OP/CL SELECT OP/CL H, P2 L, P2 OP/CL OP/CL OP/CL OP/CL C2-3710-PP-028 C2-3710-PD-001 NOTE 1 NOTE 1 NOTE 1 NOTE 1 NOTE 1 MISMATCH MISMATCH MISMATCH MISMATCH MISMATCH MISMATCH MISMATCH MISMATCH MISMATCH MISMATCH MISMATCH OP/CL 24"x16" 2"x1-1/2" 3710-WR-1949-C1A-8"-N SIZE: MATERIAL: MOTOR: C2-3710-TM-012 TAILING THICKENER NO.2 MECHANISM R1B 3710-WR-1947-C1A-2"-N C2-3710-PP-031 3"x1-1/2" 3"x2" 3710-RE-1002-C1A-4"-N 3710-WR-1945-C1A-1-1/2"-N FI FI 3710 00419 XV + FI 3710-SL-1696-R1B-24"-N 3710-WR-1948-C1A-8"-N 3710 00436 XV + 3710 00438 XV + 3710 00404 FE + 3710 00437 XV + 3710 00439 XV + C2-3710-TK-012 3710-WR-1952-C1A-8"-N 3710-SL-1701-R1B-24"-N 3710-WR-1933-C1A-8"-N 3710-WR-1951-C1A-8"-N 3710-WR-1002-C1A-48"-N 3710-WG-1026-C1A-2"-N 3710 00416 XV + FI 3710 00418 XV + 3710-SL-1694-R1B-16"-N 3710 00423 XV + 3710-SL-1697-R1B-24"-N 3710 00442 XV + V3 3710-SL-1700-R1B-16"-N 3710-SL-1680-R1B-60"-N 3710 00406 XV + 3710-WR-1946-C1A-8"-N SIZE: C2-3710-TK-012 TAILING THICKENER NO.2 TANK 3710-SL-1698-R1B-24"-N 3710-SL-1699-R1B-30"-N 3710 00426 XV + 3710-SL-1695-R1B-24"-N 3710 00412 XV + 3710 00428 XV + 3710 00401 FE + C2-3710-TM-012 FI 3710 00417 XV + FI 3710 00409 XV + 24"x16" 3710-WR-1947-C1A-1-1/2"-N 3710 00427 XV + 24"x16" 3710 00443 XV + FI 18"x16" 3710 00413 XV + 24"x16" FI 3710 00429 XV + 3710 00422 XV + 18"x16" SIZE: MATERIAL: MOTOR: C2-3710-PP-031 TAILING THICKENER NO.2 U/F PUMP (AFD) 3710 00408 XV + 3710-WR-1933-C1A-8"-N 3710 00407 XV + C1A ES ES FL AG KM LT ISSUED FOR CLIENT REVIEW 19-Dec-11 B RP NOT USED 05-Jul-11 A 12/19/2011 K. MUNDY A.GUNSON A. REGNAULT L.TAMELIN 12/19/2011 6:12:40 PM WBS: 3710 B PIPING AND INSTRUMENTATION DIAGRAM TAILING THICKENING 3700-25J-004 TAILING THICKENER NO. 2 ES V ES FI 26"x24" FI FI FI FI FI FI FI FI FI FI FI FI 8" D 4 F B A 3 2 1 5 6 8 E 7 C REV. APPROVED CHK. DES. REV. DATE REVISION DESCRIPTION CLIENT LEAD ENGINEER SCALE DRAWING NUMBER CHECK DESIGN CHECK DRAWING DESIGNED BY DRAWN BY APPROVAL DATE APPROVAL DATE APPROVED CHK. DES. REV. DATE REVISION DESCRIPTION REFERENCE DRAWING No. 1:100 0 1:200 5m 10m 0 5m 10m 15m 20m 1:500 10m 0 20m 30m 40m 50m 1:1000 0 100m 50m 1:20 0 0.5m 1m 1.5m 2m 0 1:25 0.5m 1m 1.5m 1:33 1/3 2.5m 2m 0 1m 2m 3m 0 1:50 1m 2m 3m 4m 5m CAD FILE NAME: P:0CAD000SPEM** MODEL UPDATED: DWG. FILE UPDATED: MANUAL CHANGES MADE: YES NO YES NO YES NO PROJECT MANAGER ENGINEERING MANAGER AREA PROJECTENGINEER REFERENCE DRAWINGS SAFETY SHARE: APPROVAL DATE CONTRACT NO. SAFETY SHARE : BA6CVA1.IGR NOTICE: THIS DRAWING HAS NOT BEEN PUBLISHED AND IS THE SOLE PROPERTY OF FLUOR AND IS LENT TO THE BORROWER FOR THEIR CONFIDENTIAL USE ONLY, AND IN CONSIDERATION OF THE LOAN OF THIS DRAWING, THE BORROWER PROMISES AND AGREES TO RETURN IT UPON REQUEST AND AGREES THAT IT WILL NOT BE REPRODUCED, COPIED LENT OR OTHERWISE DISPOSED OF DIRECTLY OR INDIRECTLY, NOR USED FOR ANY OTHER PURPOSE OTHER THAN WHICH IT IS FURNISHED. NONE Apr 2011 240K-C2- FI NOTES: 1. MINIMUM DISTANCE 2"x1-1/2"
  • 220.
    T3 P.O NO.: VENDOR DWGNO.: VENDOR: 3700-25J-306 3710 00638 XA 3710 00638 ZS 3710 00636 ZS OP/CL MISMATCH 3710 00643 XA 3710 00623 XA 3710 00608 XA 3710 00628 XA MISMATCH 3710 00642 ZS 3710 00623 ZS 3710 00626 XA MISMATCH 3710 00609 ZS 3710 00639 XA 3710 00617 XA OP/CL 3710 00636 XA 3710 00601 WQI MASS FLOW 3710 00612 ZS 3710 00643 ZS 3710 00605 PIT 3710 00619 XA 3710 00618 XA 3710 00639 ZS OP/CL 3710 00604 FI L, P2 LL, P1 3710 00604 FIT 3710 00601 FY 3710 00601 HY 3710 00629 ZS 3710 00613 XA MISMATCH 3710 00637 ZS 3710 00637 XA 3710 00609 XA MISMATCH 3710 00616 XA MISMATCH 3710 00619 ZS 3710 00682 HS 3710 00603 PIT 3710 00642 XA 3710 00628 ZS OP/CL 3710 00682 II 3710 00616 ZS OP/CL 3710 00613 ZS OP/CL 3710 00618 ZS 3710 00607 ZS 3710 00601 FIT 3710 00682 XA FAULT 3710 00627 XA 3710 00629 XA 3710 00622 XA 3710 00607 XA 3710 00601 DIC M 3710 00626 ZS 3710 00606 XA 3710 00622 ZS OP/CL 3710 00605 PI 3710 00627 ZS OP/CL 3710 00601 FIC OP/CL 3710 00603 PIC M 3710 00608 ZS 3710 00617 ZS 3710 00606 ZS 3710 00612 XA 3710 00642 B HS 3710 00601 DX 3710 00601 DE 3710 00601 DIT PROCESS WATER 2852 3700-25J-001 GLAND SEAL WATER 2952 3900-25J-023 TAILING TAILING THICKENER FEED DISTRIBUTOR, C2-3710-DI-002 2378 3700-25J-001 FLOCCULANT FLOCCULANT METERING PUMP 2379 3700-25J-014 TAILING THICKENER U/F TAILING COLLECTION BOX, C2-3810-BX-102 2381 3800-25J-001 TAILING THICKENER U/F THICKENER NO. 3 RECYCLE, C2-3710-PP-038 2335 3700-25J-003 TAILING THICKENER U/F TAILING THICKENER NO 3 RECYCLE PUMP, 2344 3700-25J-003 TAILING THICKENER O/F RECYCLE WATER COLLECTION POND, 2349 3700-25J-013 NOTES: 1. MINIMUM DISTANCE NOTE 1 NOTE 1 NOTE 1 C2-3710-PD-001 C2-3710-PP-038 AFD OP/CL L, P2 OP/CL OP/CL OP/CL OP/CL SELECT H, P2 L, P2 OP/CL OP/CL L, P2 LL, P2 MIN. OP/CL C2-3710-PD-001 OP/CL MIN. OP/CL OP/CL OP/CL MIN. OP/CL MISMATCH MISMATCH MISMATCH MISMATCH MISMATCH MISMATCH MISMATCH MISMATCH MISMATCH MISMATCH MISMATCH MISMATCH MISMATCH MISMATCH MISMATCH MISMATCH NOTE 1 NOTE 1 AG KM LT ISSUED FOR CLIENT REVIEW 19-Dec-11 B RP NOT USED 05-Jul-11 A 12/19/2011 K. MUNDY A. GUNSON A. REGNAULT L. TAMELIN 12/19/2011 6:13:37 PM WBS: 3710 B PIPING AND INSTRUMENTATION DIAGRAM TAILING THICKENING 3700-25J-006 TAILING THICKENER NO. 3 V 3710-SL-1707-R1B-24"-N 3710-WR-1934-C1A-8"-N 3710-WR-1956-C1A-8"-N 3710-WR-1959-C1A-8"-N 3710-WR-1960-C1A-8"-N FI FI FI FI ES ES ES FI FL FI FI FI FI FI FI FI FI 3710 00617 XV + 3710 00613 XV + 18"x16" 3710-SL-1703-R1B-24"-N 3"x1-1/2" 3710 00642 XV + 3710-SL-1706-R1B-30"-N 3710 00618 XV + 3710 00622 XV + 3710-WR-1958-C1A-1-1/2"-N SIZE: MATERIAL: MOTOR: C2-3710-TM-013 TAILING THICKENER NO.3 MECHANISM 24"x16" 3710-WR-1003-C1A-48"-N 3710 00637 XV + 3710 00623 XV + 3710-SL-1681-R1B-60"-N 3710 00626 XV + 3710 00606 XV + C2-3710-TK-11736 18"x16" SIZE: C2-3710-TK-11736 TAILING THICKENER NO.3 TANK 3710 00629 XV + 3710 00643 XV + C2-3710-PP-040 C2-3710-TM-013 3710-SL-1691-R1B-16"-N 3710-WG-1027-C1A-2"-N 3710 00619 XV + SIZE: MATERIAL: MOTOR: C2-3710-PP-040 TAILING THICKENER NO.3 U/F PUMP (AFD) 3710 00601 FE + 3710 00627 XV + R1B 24"x16" 3710 00639 XV + 3710-SL-1704-R1B-24"-N 3710-WR-1955-C1A-2"-N C1A 3710-RE-1003-C1A-4"-N 3"x2" 3710-WR-1957-C1A-8"-N 3710 00612 XV + 24"x16" 3710 00608 XV + 3710-SL-1702-R1B-24"-N 3710-WR-1954-C1A-8"-N 3710 006