Ihr individueller Schüco Katalog

Sehr geehrte Kundin, sehr geehrter Kunde,


wir freuen uns, Ihnen heute Ihren individuellen Katalog mit Stand 03.2011
überreichen zu dürfen.


Dieser Katalog beinhaltet folgende Kompendien:

2007
       2007 /
       2007 /
       2007 / C
       2007 /
       2007 /
       2007 /
       2007 /
       2007 / Jansen
       2007 /
       2007 / Schüco
       2007 /



Die Preise entnehmen Sie bitte der aktuellen Gesamtpreisliste oder erfragen diese bei
Ihrem zuständigen Außendienst-Mitarbeiter.


Wir danken Ihnen für Ihr Vertrauen in unser Unternehmen sowie in unsere Produkte
und freuen uns auf eine erfolgreiche Zusammenarbeit.


Mit freundlichen Grüßen
Ihre Schüco International KG
Приветствие         Schüco  │  
                                                                                   Welcome




Schüco – специалист в области окон и солнечных батарей
Schüco - the address for windows and solar products

                   Энергия – важнейшая тема                  Energy is one of the “mega topics”
                   будущего и мы чувствуем это уже           of the future – the consequences of
                   сегодня. Поэтому мы приняли               which can already be felt. This is
                   решение внедрять передовые                why Schüco offers innovative ideas
                   идеи в отношении производства             concerning the “Energy One-Two”,
                   и экономии энергии, например,             i.e. the saving and generation of
                   «двойного энергетического                 energy. Highly insulated windows
                   паспорта», т.е., окон с высокой           help reduce consumption of
                   степенью теплоизоляции,                   expensive oil. And you can use the
                   позволяющих экономить дорогую             roof or the façade of your home as
                   нефть. Кровля и фасад также               a power station to generate solar
                   могут участвовать в производс-            energy. The combination of the two
                   тве нужной для дома энергии,              offers the one-off opportunity to
                   если на них установить солнеч-            both save and generate energy.
                   ные батареи. Такое сочетание              “The address for windows and
                   технологий экономии и генериро-           solar” is therefore much more than
                   вания энергии предоставляет               the title of our marketing campaign.
                   уникальные возможности.                   It represents our expectation; it is
                   «Специалист в области окон и              our vision for the future.
                   солнечных батарей» – это
                   больше, чем название нашей                Architects have always been
                   маркетинговой кампании. Это –             visionaries. They are the people
                   наша цель, наше видение                   who amaze and inspire us with their
                   будущего.                                 innovative ideas. They are the
                   Архитекторы всегда опережали              people who create the blueprints for
                   свое время. Именно они вызыва-            exciting spaces and constructions.
                   ли восхищение и воодушевление
                   своими новаторскими идеями.               Visions must however also be
                   Именно они создавали удиви-               feasible. The following pages
                   тельные пространства и строе-             present creative solutions to the
                   ния на основе первых эскизов.             four biggest topics of our time:
                   Видения будущего живы, только             energy, security, design and
                   если они реализуемы. В этой               automation.
                   брошюре мы представляем Вам
                   творческие решения самых                  Take advantage of the multitude of
                   волнующих проблем нашего                  options that the World of Schüco
                   времени: энергии, безопасности,           offers – both now and in the future.
                   дизайна, автоматизации. Вос-
                   пользуйтесь разнообразными
                   возможностями «Мира Schüco»               Best wishes,
                   сейчас и в будущем.

                   Искренне Ваш,




                                   Дирк У. Хиндрикс
                                   Президент и генеральный директор
                                   Schüco International KG
                                   President and CEO, Schüco International KG
  │  Schüco
  │  Schüco         Основные новинки
                     Top innovations




           Основные новинки
           Top innovations

           Выбирая Schüco, Вы делаете       Schüco products represent system-
           ставку на опыт в области         based expertise with numerous
           системного подхода и             new products offering considerable
           многочисленные новинки,          added value with regard to energy,
           обеспечивая выигрыш в энергии,   security, automation and design.
           безопасности, дизайне,           These innovative products impress
           автоматизации. При этом          through their system compatibility
           инновации привлекают высокой     and maximum design freedom.
           системной совместимостью и
           максимальной свободой выбора
           архитектурных решений.




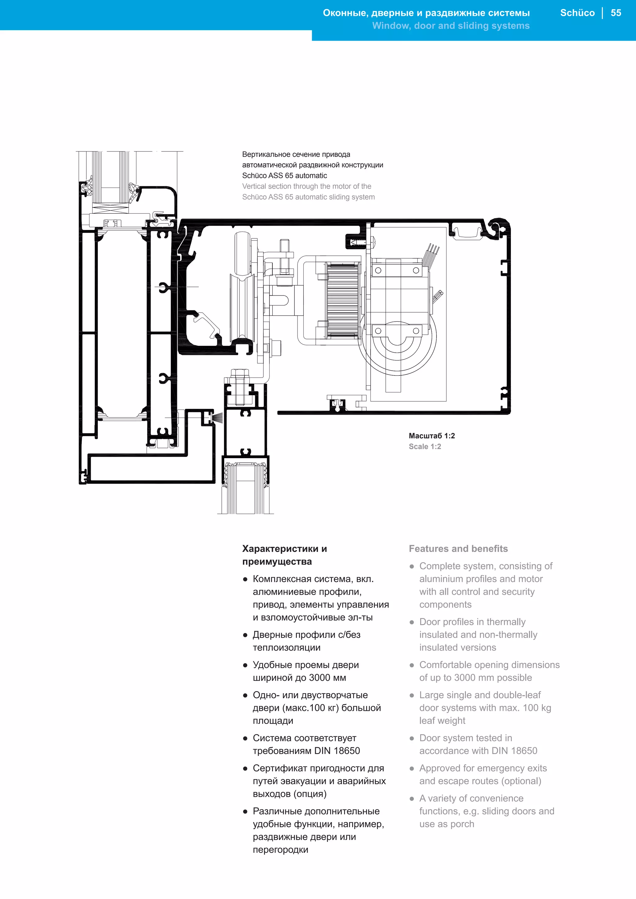
           Schüco Окно AWS 75.SI            Фурнитура Schüco TipTronic           Schüco Фасад SFC 85
           Schüco Window AWS 75.SI          Schüco TipTronic fitting             Schüco Façade SFC 85

           cтр. 0                          cтр.                               cтр. 58
           Page 0                          Page                               Page 58




           Schüco Зимний сад COC 50         Окна Janisol SK                      Schüco Наружные жалюзи 
           Schüco Conservatory COC 50       Janisol projected top hung window    BEB 80 EC
                                                                                 Schüco External Blinds BEB 80 EC

           cтр. 6                          cтр. 7                              cтр. 76
           Page 6                          Page 7                              Page 76
Содержание          Schüco  │  5
                                                        Content




     Содержание
     Content

 6   Темы будущего                  69   Сертифицированная конструк-
     Topics of the future                ция дымо- и теплоотвода с
                                         верхнеподвесным окном
                                         Certified SHEVS system
                                         solution with projected top-hung
16   Оконные, дверные и                  window
     раздвижные системы             70   Проверенное системное
     Window, door and                    решение дымо- и теплоотвода
     sliding systems                     с окном с жалюзи
                                         Certified SHEVS system
19   Оконные системы                     solution with louvred window
     Window systems

39   Фурнитура
     Fittings                       71   Schüco Стальные
45   Дверные системы
                                         системы Jansen
     Door systems                        Schüco-Jansen
                                         steel systems
51   Раздвижные системы
     Sliding systems                72   Окна и двери Janisol
                                         Janisol windows and doors

                                    73   Фасадные системы VISS
56   Фасады и зимние                     VISS façade systems
     сады
                                    74   Огнестойкие системы
     Façades and                         VISS Fire
     conservatory systems                VISS Fire – fire protection
                                         systems
58   Schüco Фасад SFC 85
     Schüco Façade SFC 85

60   Schüco Фасад FW 60+SG
                  FW 60
                                    75   Солнцезащитные
     Schüco Façade FW 60+SG
                                         системы
62   Schüco Фасад S�C 50                 Solar shading systems
     Schüco Façade S�C 50
                                    76   Schüco �аружные жалюзи
64   Schüco Зимний сад COC 50            BEB 80 EC
     Schüco Conservatory COC 50          Schüco External Blinds BEB 80 EC

                                    78   Подвижные солнцезащитные
                                         системы Schüco SunControl
67   Огнестойкие и дымо-                 Schüco SunControl –
     защитные системы                    active solar shading

     Fire and smoke
     protection systems
                                    79   О компании
68   �ормы и инструкции, регули-         The company
     рующие применение устрой-
     ств дымо- и теплоотвода
     Standards and guidelines for
     smoke and heat ventilation
     systems
6  │  Schüco     Темы будущего
                 Topics of the future




                            Четыре основные темы в
                            архитектуре будущего:

                                        Energy, Security,
                                        Automation, Design.
                            Одним словом: Schüco.




               The four key issues
               for the future:

                            Energy, Security,
                            Automation, Design.
           In a word: Schüco.
Темы будущего       Schüco  │  7
                                                         Topics of the future




В будущем, при разработке             In future, our architectural plans
архитектурных проектов,               and designs, the construction phase
строительстве и эксплуатации зданий   and subsequent use of real estate
решающее значение будут иметь         will be determined by additional new
совершенно иные параметры. Кроме      parameters. Energy, security,
функционального назначения здания,    automation and design will become
его оснащения и архитектурного        key factors, just as building function,
решения, значительное внимание        room book and urban planning are now.
уделяется таким факторам, как         These parameters are the result of
расход энергии, безопасность,         social developments and the demands
наличие автоматических систем         of future generations on our built
и дизайн. Это стало возможным в       environment. Our challenge is to meet
результате развития общества и        the needs of the next
учета требований будущих поколений    generation.
к построенному нами миру. �аша
задача – выполнить эти требования.
8  │  Schüco   Темы будущего
               Topics of the future




           Energy


                                      При проектировании зданий          A building’s function is the most
                                      наибольшее внимание                important consideration during
                                      уделяется его функциональному      the planning phase. In the past,
                                      назначению. Архитектурные и        architectural and civic
                                      градостроительные аспекты          considerations were equally
                                      продолжают учитываться и           important – indeed they still are
                                      сейчас, однако экономическая       today. Financial necessity was
                                      целесообразность ранее, как        often postulated, only to be ignored
                                      правило, не учитывалась, а         during the construction process
                                      вопросы экологии и энергетики      itself, whilst ecological and
                                      вообще играли второстепенную       energy-conscious aspects were
                                      роль.                              only of secondary importance.

                                      Мы даже не можем представить       However, this will change much
                                      себе, насколько кардинально        more fundamentally and more
                                      изменится ситуация в               radically than many people realise.
                                      будущем. Список приоритетов        In years to come, the priority list will
                                      будет выглядеть иначе. �а          look rather different. Function will
                                      первом месте будет стоять          be paramount, followed by energy-
                                      функциональность, затем            related requirements and economic
                                      рациональное энергопотребление     parameters that take into account
                                      с учетом долгосрочной стоимости    the operation costs of a building in
                                      эксплуатации здания, а также       the long term, under which aspect
                                      экологии. И только в самом конце   environmental considerations are
                                      будут стоять архитектурные и       also subsumed. Only once due
                                      градостроительные требования.      consideration has been given to
                                                                         these factors will attention turn to
                                      Ископаемые источники энергии       architectural and urban attributes.
                                      скоро нельзя будет использовать
                                      в тех же объемах. Под              This is a result of the increasing
                                      давлением социума изменится        scarcity of fossil fuels. The resulting
                                      архитектура. Здания должны         socio-political pressure will change
                                      эксплуатироваться даже тогда,      architecture. In the future, the
                                      когда иссякнут существующие        lifecycle of buildings must be
                                      запасы.                            sustainable well into the time when
                                                                         fossil fuels can no longer be used
                                      Кроме того, в ЕС вводится          to the extent that they are today.
                                      энергетический паспорт,
                                      учитывающий класс                  There is also the EU-wide
                                      эффективности расходования         introduction of the energy passport
                                      энергии и энергопотребление.       with its key criteria of energy
                                      В дальнейшем в нем будет           efficiency class and energy
                                      определяться энергетическая        requirement. In future, the energy
                                      ценность любой недвижимости.       passport will record the energy
                                                                         value of any type of real estate.
                                      Архитекторы, в сотрудничестве с
                                      другими специалистами, смогут      For architects, this means working
                                      разработать качественные           with other designers in creative
                                      энергосберегающие здания.          planning processes to create
                                                                         architecture of abiding quality
                                                                         thanks to a trend-setting energy
                                                                         concept.
Темы будущего       Schüco  │  
                                                                     Topics of the future




Должна ли энергия играть
доминирующую роль в архитектуре?
И как бы при этом выглядело
окружающее нас пространство?
Should energy use play a dominant role
in architecture? What would the built
environment look like if it did?

Schüco делает энергию           With Schüco, energy remains
невидимой. Все элементы         invisible. All Schüco façade units
фасадов Schüco обеспечивают     offer optimised thermal insulation
оптимальную и при этом          which remains hidden from view.
совершенно незаметную           As with the innovative Schüco
теплоизоляцию. Таково же        AWS generation of windows
новое поколение окон Schüco     (Uf =1.4 with a face width of
Окно AWS (Uf = 1,4 при          117 mm). However, architects still
видимой ширине 117 мм).         enjoy the same level of design
Фантазия архитектора при        freedom.
проектировании фасада по-
прежнему практически ничем не
ограничена.
10  │  Schüco      Темы будущего
                   Topics of the future




                Security


                                          В наше время тема безопас-        In the current climate, security
                                          ности приобретает особое          is a topic of special importance.
                                          значение. Согласно опросам,       According to a survey in Germany
                                          проведенным в Германии            conducted by the Allensbach
                                          Алленсбахским институтом          Opinion Poll, people are most
                                          исследования общественного        concerned about employment
                                          мнения, больше всего люди         (58.8 %) followed by the future for
                                          боятся безработицы (58,8 %).      young people (52 %). Third in the
                                          А 52 % обеспокоены перспекти-     list of concerns came fear of crime
                                          вами для молодого поколения.      and physical injury (48 %).
                                          Страх перед преступлениями и
                                          телесными повреждениями был       This latter concern is one that
                                          упомянут у 48 % опрошенных, и     architects must take seriously.
                                          находится на третьем месте в      In addition to their basic job of
                                          списке страхов.                   protection against the elements,
                                                                            heat and cold, buildings also
                                          Архитекторы должны всерьез        provide a general protective
                                          воспринимать эти опасения.        function that goes well beyond
                                          �аряду с традиционной функ-       the security of individual building
                                          цией укрытия от холода, жары      components. Buildings must
                                          и непогоды, дома выполняют        therefore provide their occupants
                                          и общую защитную функцию,         with a feeling of security and
                                          которая выходит за пределы        safety against threats from
                                          взломоустойчивости отдельных      without, whether real or imagined.
                                          блоков. Дом должен давать оби-
                                          тателями чувство безопасности     A conflict is developing in
                                          и защищать их от любых угроз,     architecture between the need
                                          исходящих извне. При этом речь    for security on the one hand, and
                                          идет не только о реальных, но и   the need for transparency on the
                                          о воображаемых опасностях.        other. The distinction between
                                                                            inside and outside is
                                          Перед архитектором при этом       becoming blurred as a result,
                                          встают противоречивые задачи:     indeed in some cases it is even
                                          обеспечить при значительной       disappearing altogether. Glass
                                          доле прозрачных конструкций       façades allow the observer to
                                          высокий уровень безопасности.     watch the production of cars.
                                          Граница между внешним и внут-     Office workers perch at their
                                          ренним размывается, а где-то      desks with their backs to the
                                          – исчезает полностью. Фасады      outside world, separated only by
                                          из стекла позволяют увидеть       a glass wall from the steep drop
                                          процесс производства авто-        behind them. Airport terminals
                                          мобилей. Офисные служащие         can be seen through with a single
                                          сидят на вращающихся стульях      glance and shopping demands
                                          на краю пропасти, свободному      complete freedom from building
                                          падению в которую мешает          obstructions. In all these
                                          только стеклянная стена за        scenarios, security is invisible.
                                          спиной. Терминалы аэропортов
                                          просматриваются насквозь, а
                                          поход за покупками требует пол-
                                          ного отсутствия видимых пре-
                                          пятствий. Во всех этих случаях
                                          защита должна быть невидимой.
Темы будущего       Schüco  │  11
                                                            Topics of the future




Безопасность: турникеты у входа, стены вокруг
рабочих мест и фабричных цехов и забор?
Security: Entrances with turnstiles, walls
around offices and factory halls, protection
through fences?




Schüco обеспечивает              Schüco provides for direct
безопасность непосредственно     security in buildings. Biometric
в самом здании.                  access control with remote
Радиоуправляемые системы         triggering, “invisible”, integrated
ограничения доступа по           SHEVS, aluminium fire protection
биометрическим параметрам,       constructions and foolproof
«невидимая» встроенная           emergency door security are just
система дымоотвода,              a few examples.Security is
огнестойкие конструкции из       essential. It must be perceptible
алюминия, блокировка дверей      and tangible, yet be as invisible as
аварийного выхода с защитой от   possible. For architects and users.
неправильного использования –
вот только несколько примеров.
Безопасность необходима, она
должна быть ощутимой и при
этом настолько незаметной,
насколько это возможно. Для
архитекторов и пользователей.
1  │  Schüco      Темы будущего
                   Topics of the future




                Automation


                                          Ранее автоматическими систе-      Building automation was
                                          мами занимались проектиров-       previously the preserve of
                                          щики и инженеры, которые про-     designers and engineers who
                                          ектировали и осуществляли         planned and managed air
                                          управление кондиционерами,        conditioning, heating, and water
                                          отопительными системами и         treatment systems. Nowadays
                                          водоснабжением. Сейчас авто-      however, building automation
                                          матизация выходит за рамки        goes far beyond plate ducts and
                                          коробов и труб. Современные       pipes. The possibilities presented
                                          цифровые технологии управле-      by modern digital control
                                          ния, в которых количество пере-   technology, by which the number
                                          дающих данные цифровых            of data points and processing
                                          устройств и скорость обработки    speed no longer matters, allows
                                          больше не имеют значения,         additional functions to be
                                          позволяют автоматизировать и      automated.
                                          другие функции.
                                                                            This is now a key field for
                                          Так автоматизация входит в круг   architects. Externally mounted
                                          интересов архитектора.            solar shading blinds, internal
                                          Внешняя солнцезащита, внут-       anti-glare shading, light control
                                          ренние устройства антиблико-      and air conditioning allow
                                          вой защиты, светонаправляю-       individual adjustments. Occupants
                                          щие жалюзи и настройка конди-     and users enjoy far more options
                                          ционеров позволяют обеспечить     to adjust the room climate and
                                          комфортные условия для каждо-     lighting to suit their needs. The
                                          го. У обитателей и посетителей    technology must, of course,
                                          здания намного больше возмож-     work reliably and be concealed
                                          ностей по своему желанию регу-    to the greatest possible extent.
                                          лировать микроклимат и осве-      All functions must be self-
                                          щенность. При этом устройства     explanatory, assuming that they
                                          должны безупречно функциони-      are operated correctly.
                                          ровать и по возможности быть
                                          незаметными. Все функции          When technology disappears,
                                          должны быть интуитивно понят-     becomes invisible and intangible,
                                          ны, а ошибки – исключены.         problems at the interface level
                                                                            can arise. This explains the still
                                          Когда устройства невидимы и       surprisingly low acceptance level
                                          неощутимы, возникают пробле-      that today’s technology –
                                          мы на уровне интерфейса. Этим     summarised under the banner
                                          объясняется по-прежнему невы-     “intelligent home” – enjoys in the
                                          сокая популярность в частных      residential construction sector.
                                          домах систем «умный дом».         A level of building automation
                                          Степень автоматизации, которая    that in the public world of work,
                                          не вызывает у нас возражений      culture and leisure is accepted
                                          на промышленных объектах, в       without reservation, appears to be
                                          офисных зданиях, культурно-       unwanted in the private sphere.
                                          развлекательных комплексах,       Given that comparable electronic
                                          оказывается неприемлемой в        systems in private cars are
                                          собственном доме.                 considered a matter of course,
                                          Парадоксально, но факт: те же     this would seem paradoxical.
                                          электронные системы в личном
                                          автомобиле воспринимаются как
                                          нечто само собой разумеющееся.
Темы будущего       Schüco  │  1
                                                                      Topics of the future




Мобильный телефон, автомобиль и бытовая
радиоэлектронная аппаратура демонстрируют
нам современный уровень развития технологий.
Зачастую – для нашей пользы, иногда –
только для развлечения. В строительстве
технологический прогресс не так заметен, но
разве стоит совсем отказываться от него?
�obile phones, cars and entertainment
electronics are always at the cutting edge
of technology. Often for our use and benefit,
sometimes simply as toys. In construction,
the pace of change is slower, but do we want
it to stand still?
Кроме удобства, современные      In addition to aspects of comfort,
автоматизированные системы       modern automated building
для зданий, например, фурни-     components such as TipTronic
тура TipTronic, предоставляют    fittings offer enhanced window
дополнительные функции, а        functions, e.g. time and sensor
также допускают управление       control. They are also secure
устройствами по времени и с      and enable easy access living.
помощью датчиков. Они обеспе-    Advanced and reliable.
чивают безопасность и позволя-   Automation is more than comfort.
ют убрать барьеры. Тщательно
разработанная, надежная тех-
нология. Автоматизация – это
больше, чем просто комфорт.
1  │  Schüco      Темы будущего
                   Topics of the future




                Design


                                          Дизайн определяет внешний вид      Design endows objects with a
                                          и функциональность. �ачиная с      certain form and function, from
                                          автомобиля, скрепки, одежды и      cars to paper clips, clothing to
                                          заканчивая стулом. Дизайн – это    chairs. Yet there is much more
                                          больше, чем оформление и           to design than form and styling:
                                          стиль. Удачный дизайн – это        good design is a complex process
                                          комплексный процесс, в ходе        combining various and often
                                          которого решаются различные        conflicting requirements so that
                                          и часто противоречащие друг        objects function in the intended
                                          другу задачи, цель которых –       way. Design is good only if
                                          добиться необходимой нам           aesthetics, ergonomics,
                                          функциональности. Дизайн           longevity, function, ecology and
                                          требуется там, где эстетика,       comfort complement each other in
                                          эргономика, долговечность,         a harmonious way.
                                          функциональность, экология и
                                          удобство находятся в гармонии      Design is the difference between
                                          и дополняют друг друга.            architecture and rudimentary
                                                                             construction. The particular
                                          Различие между архитектурой        design quality of architecture
                                          и массовой застройкой состоит      raises it up from the merely useful
                                          в форме. Художественная            or essential. “Architecture is the
                                          ценность архитектурных             harmonisation of all parts such
                                          объектов поднимает их над          that nothing can be added, taken
                                          миром утилитарности и              away or changed without
                                          необходимости. «Архитектура –      destroying the whole.”
                                          это гармония и соразмерность       (Leon Battista Alberti, 1452)
                                          всех частей, которая достигается
                                          тогда, когда ни убавить, ни
                                          прибавить ничего нельзя,
                                          не разрушив целого». (Леон
                                          Батиста Альберти, 1452 г.)
Темы будущего       Schüco  │  15
                                                          Topics of the future




„Less is more“. За выдающимся
дизайном скрывается нечто большее?
“Less is more”. There is more to
excellent design than this?


Оставить только главное – не     Reduction to the essentials means
значит получить меньше. Это      more, not less. �ore focus on
означает – получить больше.      function and perfection of design.
Больше внимания уделяется        �ore focus on technology. And
функциональности и совершенс-    more communication with
тву формы, а также технологии.   architects and planners. This is
Более тесное сотрудничество      the philosophy underpinning
между архитектором и проекти-    Schüco innovations such as
ровщиком. Так возникают новин-   the AvanTec fittings.
ки Schüco, например, фурнитура
AvanTec..
16 │ Schüco         Оконные, дверные и раздвижные системы
                    Window, door and sliding systems




              Оконные, дверные и раздвижные системы
              Window, door and sliding systems

              Новые системы Schüco для          Schüco’s innovative window,
              изготовления окон, дверей и       door and sliding systems represent
              раздвижных конструкций            valuable solutions that set new
              предлагают ценные решения,        standards for modern, trend-setting
              устанавливающие новые             architecture with regard to thermal
              стандарты для современной         insulation, security, comfort and
              архитектуры в вопросах энергии,   design.
              надежности, автоматизации и
              дизайна.




                                                Оконные системы                       Фурнитура
                                                Window systems                        Fittings

                                                Окна нового поколения Schüco          Системы скрытой фурнитуры
                                                AWS привлекают высокой                AvanTec и Schüco TipTronic
                                                теплоизоляцией и широким              символизируют высочайшее
                                                ассортиментом комплектующих,          качество и функциональность.
                                                что позволяет создавать               Полностью совместимая с
                                                оригинальные архитектурные            системами Schüco линия ручек
                                                объекты.                              «Дизайн» обеспечивает единство
                                                                                      оформления.
                                                The new Schüco AWS window
                                                generation impresses with its         The Schüco AvanTec and
                                                excellent thermal insulation          Schüco TipTronic concealed fittings
                                                properties and a comprehensive        systems represent the very best in
                                                system programme that allows the      quality and functionality. And the
                                                realisation of individual design      universally compatible Schüco
                                                solutions.                            handle design range allows for a
                                                                                      consistent style.


                                                стр. 19                               стр. 39
                                                Page 19                               Page 39
Оконные, дверные и раздвижные системы       Schüco │ 17
                                                                 Window, door and sliding systems




Дверные системы                       Раздвижные системы
Door systems                          Sliding systems

Объединенные в сеть устройства        Система Schüco e-slide нажатием
контроля доступа с управлением        кнопки открывает и закрывает
в режиме онлайн, предохраните-        раздвижные двери. Новинка:
ли для дверей аварийного              автоматическая раздвижная
выхода и дверные блоки с              дверь для Schüco ASS 65
плоским порогом, открывающие-         automatic – комплексное
ся на всю ширину проема –             решение для входных групп
актуальные новинки Schüco             общественных зданий.

Networked, online access control,     Large sliding door systems can
emergency door locking and easy       now be opened comfortably at the
access door systems with clear        touch of a button with Schüco
opening dimensions – the latest       e-slide.
Schüco innovations optimise           Also new: Schüco ASS 65 auto-
building security and set new tones   matic sliding door– the complete
in design.                            solution for busy entrance areas.


стр. 45                               стр. 51
Page 45                               Page 51
18 │ Schüco   Оконные, дверные и раздвижные системы
              Window, door and sliding systems
Оконные, дверные и раздвижные системы                       Schüco │ 19
                                                                   Window, door and sliding systems




Schüco Окно AWS – надежный вклад в оболочку здания
Schüco AWS windows – lasting investment in the building envelope


Правительства европейских              (Schüco AWS 75.SI, видимая             The innovative, highly thermally
стран взяли на себя обязательс-        ширина 117 мм) значительно сни-        insulated Schüco AWS window
тво ввести до 2006 г. Энергети-        жается расход энергии на               series sets new standards through
ческий паспорт здания, где             отопление. Это позволит удер-          even greater efficiency in the
указывается его энергопотребле-        жать цену на Вашу недвижи-             reduction of potential energy
ние, и который станет основным         мость в течение долгого време-         losses. A heat transition coefficient
фактором, определяющим цену            ни.                                    of 1.4 W/m²K (Schüco AWS 75.SI,
при продаже или аренде здания.                                                face width 117 mm) allows the
Центральную роль будут играть                                                 heating costs of buildings to be
ограждающие конструкции                European governments are               dramatically reduced –
здания с теплоизолированными           required to introduce the Building     a worthwhile investment in helping
оконными блоками.                      Energy Passport in 2006. It follows    to maintain the value of real estate
                                       that the Energy Passport, which        in the long term.
В этой области новое поколение         documents the energy consumed
окон Schüco AWS будет устанав-         by a building, will become a central
ливать новые стандарты благо-          factor in the sale or rental of real
даря еще более эффективной             estate. An energy-efficient building
борьбе с возможными потерями           envelope with thermally insulated
энергии. При коэффициенте              window systems will play a key role
теплопередачи 1,4 Вт/м²K               in this regard.




                                       Общий расход энергии на                Primary energy consumption in
                                       тепло- и водоснабжение на              existing stock taking typical
                                       примере офисного здания.               office building as an example

                                       Расчет на примере офисного             Calculation base:
                        -15,70 %       здания с полезной площадью             Office building, 1640 m² usable
                                       1640 м², площадью окон 472 м²,         area, window area 472 m²,
                                       соответствующего нормам по             standards of thermal insulation and
                                       теплоизоляции и отоплению 80-х         heating technology from 1980s.
                                       годов.
  242,2 кВт/м²K      204 кВтч/(м²a)                                           The resulting saving of
                                       Получившаяся в результате              22.2 kWh/(m²a) usable area is
                                       экономия в размере 22,2 кВтч/          equivalent to a saving of approx.
                                       (м²a) полезной площади соот-           2 litres of oil per m³ or 3280 litres
                                       ветствует сокращению расхода           per year for the building.
                                       мазута примерно на 2 л на м³
    Расход энергии в здании со         или 3280 л в год для всего             The consumption of 3280 litres less
    старыми окнами
                                       здания.                                oil reduces CO2 emissions by
    Пример: Uw = 2,8 Вт/м²K
    Energy consumption with old                                               9.1 tonnes per year, equivalent to
    windows                            При уменьшении количества              approx. 45,500 km car miles.
    Example: Uw = 2.8 W/m²K            сжигаемого мазута на 3280 л, в
    Расход энергии в здании с окнами   атмосферу выбрасывается на
    Schüco Окно AWS 75.SI              9,1 т в год меньше CO2 . Это
    Пример: Uw = 1,4 Вт/м²K            соответствует количеству
    Energy consumption with            выбросов автомобиля,
    Schüco Window AWS 75.SI
                                       проехавшего примерно
    Example: Uw = 1.4 W/m²K
                                       45 500 км.
20 │ Schüco          Оконные, дверные и раздвижные системы
                     Window, door and sliding systems




              Schüco Окно AWS 75.SI
              Schüco Window AWS 75.SI

                                               Максимальная прозрачность          Highest possible transparency and
                                               конструкций и простор для          design freedom combined with
                                               разнообразных дизайнерских         trendsetting thermal insulation –
                                               решений в сочетании с превыша-     the Schüco Window AWS 75.SI
                                               ющим даже современные              creates new architectural
                                               требования уровнем теплоизоля-     possibilities.
                                               ции – Schüco Окно AWS 75.SI
                                               открывает новые возможности        The Schüco AWS 75.SI aluminium
                                               для архитектора. Оконная           window system combines the
                                               система Schüco AWS 75.SI           excellent thermal insulation
                                               соединяет в себе превосходные      properties of PVC-U and timber
                                               теплоизоляционные свойства на      windows with the unique
                                               уровне пластиковых и деревян-      advantages of aluminium: durability
                                               ных окон с уникальными преиму-     and stability, narrow face widths
                                               ществами алюминия. Долговеч-       and a variety of designs – in large,
                                               ность и прочность, изящество и     transparent formats. With a basic
                                               разнообразие вариантов оформ-      depth of just 75 mm, this window
                                               ления светопрозрачных конструк-    system offers excellent versatility
                                               ций большой площади. Монтаж-       and is a superb complement to the
                                               ная глубина, составляющая          Schüco range of doors.
                                               всего 75 мм, делает оконную
                                               систему почти универсальной и      In combination with the concealed
              Schüco Окно AWS 75.SI
                                               позволяет комбинировать            fittings Schüco AvanTec and
              Schüco Window AWS 75.SI          оконные блоки с дверьми            Schüco TipTronic, Schüco
                                               Schüco. В комбинации со            AWS 75.SI meets the very highest
                                               скрытой фурнитурой Schüco          standards in terms of both design
                                               AvanTec и Schüco TipTronic         and ease of use.
                                               система Schüco AWS 75.SI
                                               отвечает самым высоким
                                               требованиям к дизайну и ком-
                                               форту.



              Schüco Окно AWS 75.SI            Schüco Window AWS 75.SI
              Новый стандарт теплоизоляции     The new thermal insulation
              для алюминиевых окон:            standard for aluminium windows:
              ● Превосходная теплоизоляция     ● Outstanding thermal insulation
                при монтажной глубине 75 мм:     for basic depths of 75 mm:
                Uf = 0,9 – 1,6 Вт/м²K            Uf values of 0.9 – 1.6 W/m²K
              ● Расширенная зона               ● Increased insulation zone with
                теплоизоляции за счет            foam-filled insulating bars
                использования специальных      ● Optimised, co-extruded centre
                термомостов                      gasket
              ● Улучшенная конструкция         ● Novel design of thermal
                коэкструдированного среднего     insulation in glazing rebate
                уплотнителя
                                               ● Comprehensive profile range
              ● Новаторский принцип
                теплоизоляции в фальце         ● Compatible with Schüco door
                стекла                           range

              ● Обширный ассортимент
                профилей
              ● Совместимость с дверьми
                Schüco
Оконные, дверные и раздвижные системы                   Schüco │ 21
                                                                    Window, door and sliding systems




                                                                              Schüco AWS 75.SI
                                                                              Системная оптимизация
                                                                              конструкции профиля улучшает
                                                                              показатели теплоизоляции и
                                                                              экономит энергию.
        Теплоизоляцию фальца
        обеспечивает вставка из спец.
        материала
                                                                              Schüco AWS 75.SI
        Thermal insulation of glazing                                         System optimisation in the profile
        rebate with foam insulating                                           improves thermal insulation and
        gusset                                                                saves energy.
        Трехкамерная конструкция
        оптимизирует теплоизоляцию
        Triple hollow chamber for
        optimised thermal insulation

        Коэкструдированный средний
        уплотнитель минимизирует
        потери тепла
        Minimised heat loss thanks to
                                                                              Масштаб 1:2
        co-extruded centre gasket
                                                                              Scale 1:2

        Оптимизация характеристик за
        счет использования
        термомостов из спец.
        материала
        Enlarged insulation zone with
        foam-filled insulating bar




Schüco AWS 75 BS.HI                     Schüco AWS 75 BS.HI
Самые высокие требования к              For the highest thermal insulation
теплоизоляции блочных окон:             requirements in a block window
● превосходная теплоизоляция            construction:
  при монтажной глубине 75 мм:          ● Outstanding thermal insulation
  Uf = 1,8 Вт/м²K (видимая                for basic depths of 75 mm:
  ширина 89 мм)                           Uf values of 1.8 W/m²K
● штапик незаметен                        (face width 89 mm)

● очень узкий профиль – 67 мм           ● No visible glazing beads

● оптимизированные                      ● Very narrow face widths from
  характеристики за счет                  67 mm
  использования специальных             ● Enlarged insulation zone with
  термомостов                             foam-filled insulating bars
● улучшенная конструкция                ● Optimised, co-extruded centre
  коэкструдированного среднего            gasket
  уплотнителя                           ● Comprehensive profile range
● обширный ассортимент                    with mullion face widths of up to
  профилей включает профили               44 mm, double-vent windows
  стойки шириной до 44 мм,                and glazing bars
  штульповые створки и
  декоративный переплет для                                                   Schüco Окно AWS 75 BS.HI
  створок                                                                     Schüco Window AWS 75 BS.HI
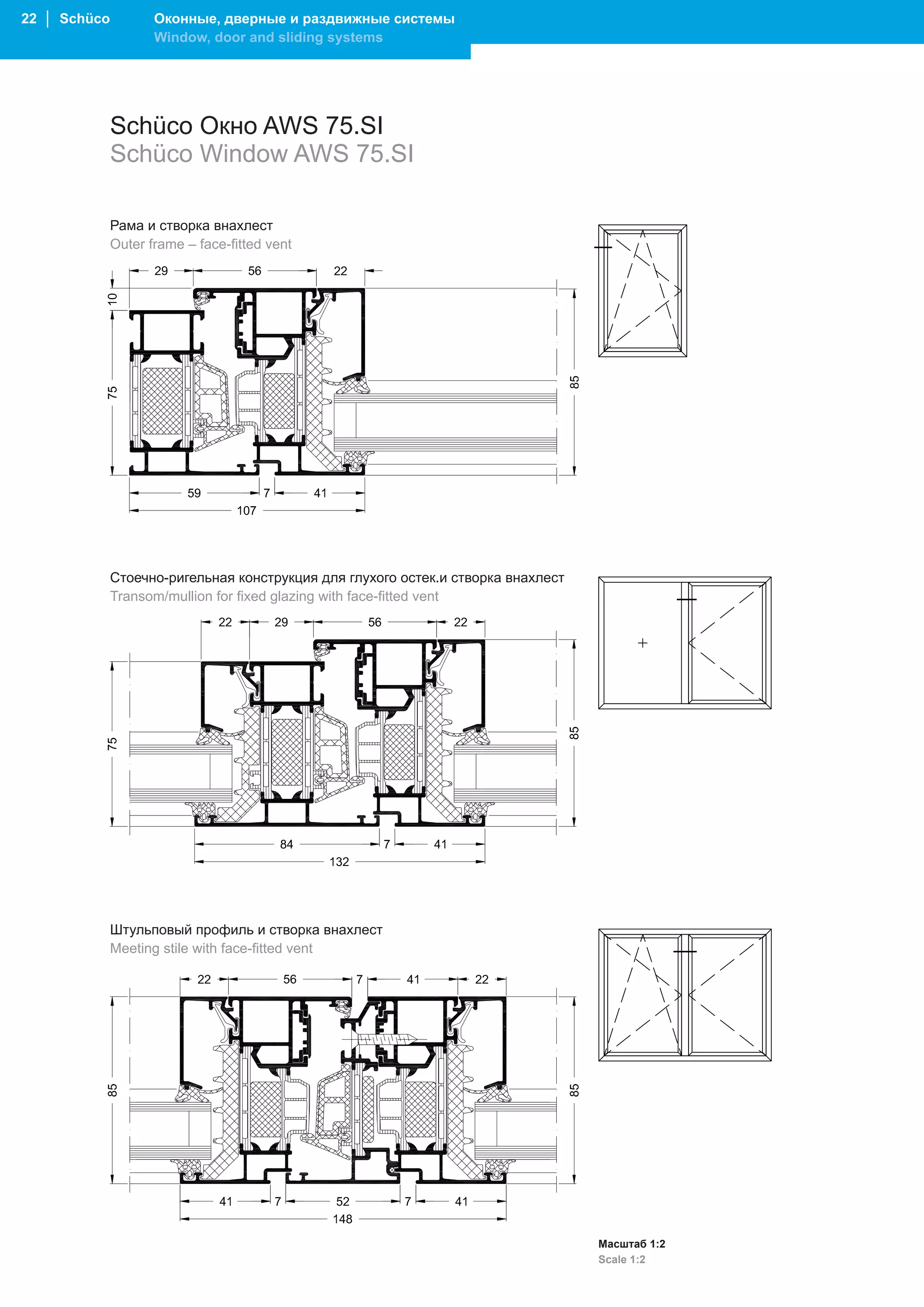
22 │ Schüco          Оконные, дверные и раздвижные системы
                     Window, door and sliding systems




              Schüco Окно AWS 75.SI
              Schüco Window AWS 75.SI

              Рама и створка внахлест
              Outer frame – face-fitted vent




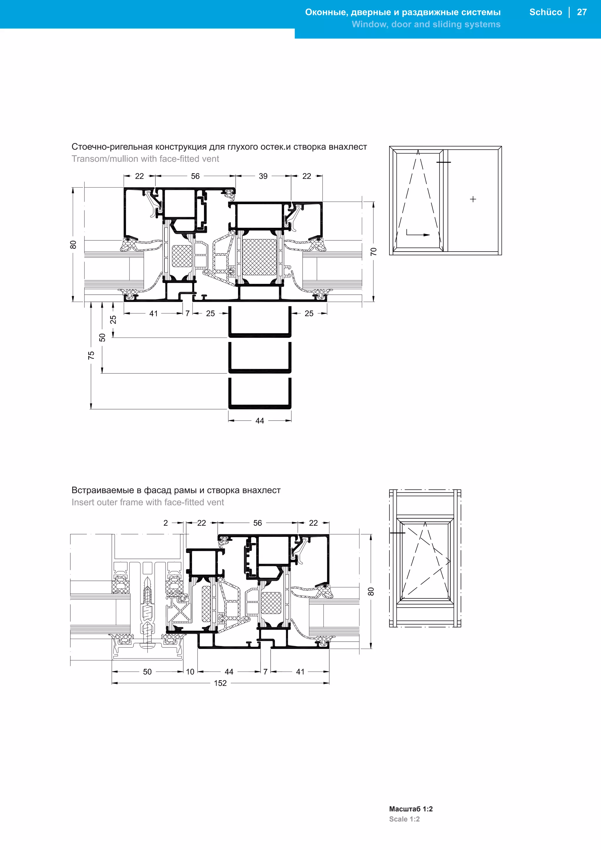
              Стоечно-ригельная конструкция для глухого остек.и створка внахлест
              Transom/mullion for fixed glazing with face-fitted vent




              Штульповый профиль и створка внахлест
              Meeting stile with face-fitted vent




                                                                                   Масштаб 1:2
                                                                                   Scale 1:2
Оконные, дверные и раздвижные системы       Schüco │ 23
                                                             Window, door and sliding systems




Schüco Окно AWS 75 BS.HI
Schüco Window AWS 75 BS.HI

Рама и створка внахлест
Outer frame – face-fitted vent




Стоечно-ригельная конструкция для глухого остек.и створка внахлест
Transom/mullion for fixed glazing with face-fitted vent




Встраиваемые в фасад рамы и створка внахлест
Insert outer frame with face-fitted vent




                                                                     Масштаб 1:2
                                                                     Scale 1:2
24 │ Schüco          Оконные, дверные и раздвижные системы
                     Window, door and sliding systems




              Schüco Окно AWS 70.HI
              Schüco Window AWS 70.HI

                                                  Schüco Окно AWS 70.HI              Schüco Window AWS 70.HI
                                                  Высококачественная оконная         The high quality window system
                                                  система с обширным набором         with comprehensive range of
                                                  возможных решений:                 solutions:
                                                  ● Улучшенные показатели            ● Improved thermal insulation for
                                                    теплоизоляции при монтажной        basic depths of 70 mm:
                                                    глубине 70 мм: Значение            Uf values of 1.7 W/m²K
                                                    коэффициента Uf = 1,7 Вт/м²K       (face width 117 mm)
                                                    (видимая ширина 117 мм)          ● Also available as flush-fitted
                                                  ● В качестве варианта                vent, outward-opening vent or as
                                                    предлагается окно с                crank-operated turn/tilt solution
                                                    располагаемой встык                for large, heavy units
                                                    створкой, открыванием наружу     ● Wide range of profiles including
                                                    или же окно с поворотно-           the Schüco AWS 70 ST.HI and
                                                    откидной створкой с                Schüco AWS 70 RL.HI design
                                                    воротковой ручкой – для            systems
                                                    тяжелых оконных блоков
                                                    больших размеров                 ● Compatible with Schüco door
                                                                                       range
                                                  ● Обширный ассортимент
                                                    профилей систем AWS 70 ST.
                                                    HI и Schüco AWS 70 RL.HI
              Schüco Окно AWS 70.HI               ● Совместимость с дверьми
              Schüco Window AWS 70.HI               Schüco




              Schüco AWS 70.HI позволяет
              оригинальным образом
              расставить акценты
              Для классических зданий
              прекрасно подойдет система
              Schüco AWS 70 ST.HI,
              имитирующая стальные
              переплеты. При реставрации
              старинных зданий или просто в
              качестве интересного акцента в
              оформлении можно
              использовать конструкции
              Schüco AWS 70 RL.HI со
              скошенным внешним контуром.         Schüco Окно AWS 70 ST.HI           Schüco Окно AWS 70 RL.HI
                                                  Система с узкими профилями,        Вариант со скошенными внешними
                                                  имитирующая стальной переплет      контурами
              Individual accents with             Schüco Window AWS 70 ST.HI         Schüco Window AWS 70 RL.HI
              Schüco AWS 70.HI                    System with narrow steel contour   Version with bevelled external contour
              The Schüco AWS 70 ST.HI system
              offers attractive steel designs
              suitable for classic buildings.
              The bevelled external contours of
              Schüco AWS 70 RL.HI make it
              ideally suited to refurbishment
              projects or simply as an
              eye-catching feature.
Оконные, дверные и раздвижные системы                      Schüco │ 25
                                                             Window, door and sliding systems




                                   Schüco AWS 70 BS.HI                 Schüco AWS 70 BS.HI
                                   Узкие профили для эстетичных        Slimline block construction to
                                   блочных окон:                       improve visual appearance:
                                   ● Хорошие показатели                ● Good thermal insulation for basic
                                     теплоизоляции при монтажной         depths of 70 mm:
                                     глубине 70 мм:                      Uf values of 2.0 W/m²K
                                     коэффициент Uf = 2,0 Вт/м²K         (face width 89 mm)
                                     (ширина 89 мм)                    ● No visible glazing beads
                                   ● Незаметный штапик                 ● Also available as flush-fitted vent
                                   ● Возможно расположение             ● Very narrow face widths from
                                     створок встык                       67 mm
                                   ● Очень узкий профиль – 67 мм       ● Enlarged insulation zone with
Schüco Окно AWS 70 BS.HI
Schüco Window AWS 70 BS.HI         ● Оптимизированные                    foam-filled insulating bars
                                     характеристики за счет            ● Comprehensive profile range
                                     использования термомостов из        with mullion face widths of up to
                                     специального материала              44 mm, meeting rails and sash
                                   ● Оптимизированные                    bars
                                     характеристики за счет
                                     использования термомостов из
                                     специального материала
                                   ● В ассортимент профилей
                                     входят стойки до 44 мм,
                                     штульповые створки и шпросы




Schüco AWS 70 WF.HI                Schüco AWS 70 WF.HI
Специальный экономичный            The Schüco AWS 70 WF.HI system
вариант ленточного остекления      has been developed especially
в системе Schüco AWS 70 WF.HI. В   for the low cost construction of
конструкции остекленного           ribbon windows. Window façades
фасада используются блочные        are based on the Schüco
окна Schüco AWS 70 BS.HI.          AWS 70 BS.HI block window
Варианты оформления                solutions. The window façade
застекленного фасада широко        offers comprehensive design
варьируются благодаря              options with cover cap versions,
многочисленным накладкам,          structural mullions and the
статическим стойкам и имитации     suggestion of a mullion / transom
стоечно-ригельных конструкций      construction in the external view
при видимой ширине 50 мм.          with a 50 mm face width.




                                                                       Schüco Окно AWS 70 WF.HI с
                                                                       накладкой
                                                                       Schüco Window AWS 70 WF.HI
                                                                       with cover cap
26 │ Schüco          Оконные, дверные и раздвижные системы
                     Window, door and sliding systems




              Schüco Окно AWS 70.HI
              Schüco Window AWS 70.HI

              Рама и створка внахлест
              Outer frame – face-fitted vent




              Стоечно-ригельная конструкция для глухого остек.и створка внахлест
              Transom/mullion for fixed glazing with face-fitted vent




              Штульповый профиль и створка внахлест
              Meeting stile with face-fitted vent




                                                                                   Масштаб 1:2
                                                                                   Scale 1:2
Оконные, дверные и раздвижные системы       Schüco │ 27
                                                             Window, door and sliding systems




Стоечно-ригельная конструкция для глухого остек.и створка внахлест
Transom/mullion with face-fitted vent




Встраиваемые в фасад рамы и створка внахлест
Insert outer frame with face-fitted vent




                                                                     Масштаб 1:2
                                                                     Scale 1:2
28 │ Schüco          Оконные, дверные и раздвижные системы
                     Window, door and sliding systems




              Schüco Окно AWS 70 BS.HI
              Schüco Window AWS 70 BS.HI

              Рама и створка внахлест
              Outer frame – face-fitted vent




              Стоечно-ригельная конструкция для глухого остек.и створка внахлест
              Transom/mullion for fixed glazing with face-fitted vent




              Встраиваемые в фасад рамы и створка внахлест
              Insert outer frame with face-fitted vent




                                                                                   Масштаб 1:2
                                                                                   Scale 1:2
Оконные, дверные и раздвижные системы       Schüco │ 29
                                                             Window, door and sliding systems




Schüco Окно AWS 70 WF.HI
Schüco Window AWS 70 WF.HI

Рама и створка внахлест
Outer frame – face-fitted vent




Стоечно-ригельная конструкция для глухого остек.и створка внахлест
Transom/mullion for fixed glazing with face-fitted vent




                                                                     Масштаб 1:2
                                                                     Scale 1:2
30 │ Schüco          Оконные, дверные и раздвижные системы
                     Window, door and sliding systems




              Schüco Окно AWS 70 ST.HI
              Schüco Window AWS 70 ST.HI

              Рама и створка внахлест
              Outer frame – face-fitted vent




              Глухое остекление с декоративной шпросой
              Fixed light with ornamental sash bar




              Штульповый профиль и створка внахлест
              Meeting stile with face-fitted vent




                                                             Масштаб 1:2
                                                             Scale 1:2
Оконные, дверные и раздвижные системы       Schüco │ 31
                                                             Window, door and sliding systems




Schüco Окно AWS 70 RL.HI
Schüco Window AWS 70 RL.HI

Рама и створка внахлест
Outer frame – face-fitted vent




Стоечно-ригельная конструкция для глухого остек.и створка внахлест
Transom/mullion for fixed glazing with face-fitted vent




Штульповый профиль и створка внахлест
Meeting stile with face-fitted vent




                                                                     Масштаб 1:2
                                                                     Scale 1:2
32 │ Schüco          Оконные, дверные и раздвижные системы
                     Window, door and sliding systems




              Schüco Окно AWS 65
              Schüco Window AWS 65

                                                Schüco Окно AWS 65                     Schüco Window AWS 65
                                                Основная серия, включающая             The basic series with
                                                разнообразные конструкции для          comprehensive range for
                                                оригинального оформления:              imaginative design:
                                                ● Улучшенная теплоизоляция             ● Improved thermal insulation for
                                                  при монтажной глубине 65 мм:           basic depths of 65 mm:
                                                  Uf =2,2 Вт/м²K (видимая                Uf values of 2.2 W/m²K
                                                  ширина 117 мм)                         (face width 117 mm)
                                                ● Профили рамы 51 мм                   ● Outer frames with face width
                                                ● Профили стоек шириной от               from 51 mm
                                                  76 до 250 мм                         ● Mullion profiles with face widths
                                                ● Профили створок шириной от             from 76 mm to 250 mm
                                                  33 мм                                ● Vent frame profiles of 33 mm
                                                ● Дополнительно: окно со                 face width and above
                                                  створкой вровень с                   ● Available as flush-fitted or
                                                  открыванием наружу                     outward-opening vent
                                                ● Обширный ассортимент                 ● Wide range of profiles including
                                                  профилей, вкл.дизайнерскую             the Schüco AWS 65 RL design
                                                  систему Schüco AWS 65 RL               system
                                                ● Совместимость с дверьми              ● Compatible with Schüco door
              Schüco Окно AWS 65                  Schüco                                 range
              Schüco Window AWS 65




              При выборе оконной системы все    Comfort and ease of use are
              большее внимание уделяется        matters of increasing importance in
              удобству. Жилье без препятствий   the area of window systems. For
              передвижению является важным      the elderly and needy, easy access
              определяющим качество жизни       construction is an important factor
              фактором для пожилых и            for an improved quality of life. For
              нуждающихся в уходе людей.        further information, please refer to
              Нормы DIN 18024 и 18025           the DIN standards 18024 and
              содержат подробные сведения       18025.
              по данному вопросу.
                                                Schüco easy access thresholds are
              Надежным решением конструк-       only 20 mm high and represent a
              ции дверей балконов и террас      reliable solution for balcony and
              являются плоские пороги Schüco    patio doors. These solutions are       Балконная дверь с плоским порогом с
              высотой всего 20 мм. В первую     well regarded in homes for the         Schüco Окном AWS 65
                                                                                       Easy access window door with
              очередь они предназначены для     aged and in hospitals.
                                                                                       Schüco Window AWS 65
              домов престарелых и больниц.      Schüco AWS window systems
              На основе оконных систем          allow for practical solutions for
              Schüco AWS создаются практич-     turn/tilt and double-vent windows
              ные решения для поворотно-        based on the concealed
              откидных и штульповых окон со     Schüco AvanTec fittings.
              скрытой фурнитурой Schüco
              AvanTec.
Оконные, дверные и раздвижные системы                  Schüco │ 33
                                                                   Window, door and sliding systems




Schüco AWS 65 BS                       Schüco AWS 65 BS
Новое решение для блочных              The new solution for block window
конструкций с монтажной                constructions with a basic depth
глубиной 65 мм:                        of 65 mm:
● Хорошая теплоизоляция при            ● Good thermal insulation for
  монтажной глубине 65 мм:               basic depths of 65 mm:
  Uf = 2,4 Вт/м²K (видимая               Uf values of 2.4 W/m²K
  ширина 89 мм)                          (face width 89 mm)
● Термомосты обеспечивают              ● Larged insulation zone with
  оптимальную теплоизоляцию              insulating bars
● Очень узкий профиль – 67 мм          ● Very narrow face widths
● Скрытый штапик                         from 67 mm

● Обширный ассортимент                 ● No visible glazing beads
  профилей включает профили            ● Comprehensive profile range
  стойки шириной до 44 мм,               with mullion face widths of up
  штульповые створки и шпросы            to 44 mm, meeting rails and
  для створок                            sash bars




                                                                           Schüco Окно AWS 65 BS
                                                                           Schüco Window AWS 65 BS




                                       Schüco AWS 65 предлагает            Schüco AWS 65 also offers a
                                       разнообразные решения для           comprehensive range of solutions
                                       специальных конструкций. Для        for special design requirements.
                                       создания конструкций со
                                       смягченными контурами               The rounded SL vent contour in
                                       идеальны профили створок SL с       conjunction with the appropriate
                                       соответствующим штапиком.           glazing bead is an attractive
                                       Скошенные наружные контуры          solution for softer lines. With its
                                       системы Schüco Окно AWS 65 RL       bevelled outer corners, the
                                       подходят для реставрации            Schüco Window AWS 65 RL
                                       старинных зданий и позволяют        system is ideally suited to
                                       расставить интересные акценты       refurbishment projects or for
                                       в оформлении новостроек.            visual emphasis.
Schüco Окно AWS 65 SL                  Оконные системы серии Schüco
Система профилей со скругленными       AWS 65 также дают возможность       The window systems of the
контурами
                                       оригинальным образом                Schüco AWS 65 series allow for
Schüco Window AWS 65 SL
System with rounded external contour   расставить акценты.                 individual accents.
34 │ Schüco          Оконные, дверные и раздвижные системы
                     Window, door and sliding systems




              Schüco Окно AWS 65
              Schüco Window AWS 65

              Рама и створка внахлест
              Outer frame – face-fitted vent




              Стоечно-ригельная конструкция для глухого остек.и створка внахлест
              Transom/mullion for fixed glazing with face-fitted vent




              Штульповый профиль и створка внахлест
              Meeting stile with face-fitted vent




                                                                                   Масштаб 1:2
                                                                                   Scale 1:2
Оконные, дверные и раздвижные системы       Schüco │ 35
                                                             Window, door and sliding systems




Schüco Окно AWS 65 BS
Schüco Window AWS 65 BS

Рама и створка внахлест
Outer frame – face-fitted vent




Стоечно-ригельная конструкция для глухого остек.и створка внахлест
Transom/mullion for fixed glazing with face-fitted vent




Встраиваемые в фасад рамы и створка внахлест
Insert outer frame with face-fitted vent




                                                                     Масштаб 1:2
                                                                     Scale 1:2
36 │ Schüco          Оконные, дверные и раздвижные системы
                     Window, door and sliding systems




              Schüco Окно AWS – окно будущего
              Schüco Window AWS – fit for the future

              Экономия энергии                 Общая программа для                  Разнообразные решения с
              обеспечивается оптимизацией      блочных окон                         системами Schüco
              теплоизоляции                    ● Новая монтаж.глуб.– 65 мм          ● Решения для открывающихся
              ● Расширенная зона               ● Решения для блочных окон с           наружу окон
                теплоизоляции                    монтаж.глуб. 65, 70 и 75 мм        ● Оконные профили для створок
              ● Улучшенная конструкция         ● Улучшенная теплоизоляция             вровень
                коэкструдированного среднего                                        ● Решение для тяжелых оконных
                уплотнителя                    ● Небольшая вид.шир.– 67 мм
                                                                                      блоков с поворотно-откидной
              ● Новый принцип теплоизоляции    ● Незаметная створка                   створкой с воротковой ручкой
                в области фальца стекла                                             ● Разнообразные варианты
                                               Разнообразные системы
              ● Термомост из вспененного                                              конструкции углов: 90° и 135°,
                                               оформления для
                материала                                                             круглые стойки
                                               оригинальных конструкций
                                                                                    ● Рамы вставных элементов со
                                               ● Вариант со скошенными
                                                                                      стеклопакетами различной
                                                 внешними контурами Schüco
                                                                                      толщины
                                                 AWS 65 RL и AWS 70 RL.HI
                                                                                    ● Разнообразные решения для
                                               ● Имитация стального переплета
                                                                                      статических и монтажных
                                                 для реставрации зданий в
                                                                                      стоек
                                                 классическом стиле Schüco
                                                 AWS 70 ST.HI                       ● Совместимость с системной
                                                                                      фурнитурой Schüco AvanTec,
                                               ● Фасадная конструкция с
                                                                                      Schüco TipTronic
                                                 элементами на высоту этажа:
                                                 Schüco AWS 70 WF.HI                ● Балконная дверь с плоским
                                                                                      порогом (высота: 20 мм)
                                               ● Профили створок со
                                                 скругленными контурами

                                               Novel design of thermal              Comprehensive solutions using
                                               insulation in glazing rebate         tried-and-tested Schüco system
                                               ● Foam-filled insulating bars        ● Solutions for outward-opening
                                               ● Integrated range for block           windows
                                                 systems                            ● Vent profiles for flush-fitted
                                               ● New basic depth of 65 mm             windows

                                               ● Solutions for block systems with   ● Solution for large, heavy units
              Schüco Окно AWS 75.SI              basic depths of 65, 70 and 75 mm     with crank-operated turn/tilt
              Schüco Window AWS 75.SI                                                 fitting
                                               ● Improved thermal insulation
                                                                                    ● Multiple options for corner
                                               ● Narrow face widths from 67 mm        designs: 90° and 135° corners
                                               ● Invisible vent frames                and rounded mullions
                                                                                    ● Insert outer frames for façades
                                               A wide variety of design systems       with variable tolerances
                                               for individual constructions
                                                                                    ● Varied solutions for structural
                                               ● Design systems with bevelled         and expansion mullions
                                                 external contour: Schüco AWS
              Energy saving through                                                 ● Can be combined with
                                                 65 RL and AWS 70 RL.HI
              optimised thermal insulation                                            Schüco AvanTec and
                                               ● Steel contour for refurbishment      Schüco TipTronic system fittings
              ● Enlarged thermal zone            of period buildings:
                                                                                    ● Easy access window door with
              ● Optimised, co-extruded           Schüco AWS 70 ST.HI
                                                                                      threshold (Height: 20 mm)
                centre gasket                  ● Window façade construction for
              ● Novel design of thermal          storey-height infill panels:
                insulation in glazing rebate     Schüco AWS 70 WF.HI
              ● Foam-filled insulating bars    ● Vent profiles in SoftLine look
Оконные, дверные и раздвижные системы                                  Schüco │ 37
                                                                          Window, door and sliding systems




                                              Sc o A 65 .HI


                                                          75 .HI

                                                                     I
                                              Sc o A 70 .HI

                                              Sc o A 70 HI




                                                                  .H
                                                                F
                                                                 .



                                                   co S 7 S
                                                              S
                                                             BS
                                                             RL

                                                             RL

                                                             ST
                                                               I
                                                               I




                                                             W
                                                            .H

                                                            .S




                                                             B
                                                     AW 0 B
                                              Sc o A 65

                                              Sc o A 70

                                              Sc o A 75

                                              Sc o A 65

                                              Sc o A 70
                                                       S

                                                       S

                                                       S

                                                        S

                                                        S

                                                        S

                                                       S

                                                        S



                                                       S
                                                hü W

                                                hü W

                                                hü W
                                                      W

                                                hü W
                                                      W

                                                hü W

                                                hü W

                                                hü W
                                              Sc o A
                                                  c

                                                   c

                                                   c

                                                   c

                                                   c

                                                   c

                                                  c

                                                   c

                                                   c
                                                hü




                                                hü



                                                hü
                                             Sc
Монтажная глубина                                                                    Basic depth

65 мм                                                                                65 mm

70 мм                                                                                70 mm

75 мм                                                                                75 mm

Тип конструкции                                                                      Type of construction
С теплоизоляцией                                                                     Insulated
С повышенной теплоизоляцией                                                          Highly insulated

Коэффициент Uf                                                                       Uf values

Вт/м²K*                                      2,2 1,7 1,4 2,2 1,7 1,7 2,2 2,4 2,0 1,8 In W/m²K*

Типы открывания                                                                      Types of opening

Окна с открыванием внутрь                                                            Inward opening windows

Пов., пов.-отк., откидная створка                                                    Side hung (SH), turn/tilt (TT), bottom hung (BH)

Створка откидная перед поворотом                                                     Tilt before turn (KvD)

Штульповая створка                                                                   Double vent

Schüco TipTronic                                                                     Schüco TipTronic

Пов.-откидная створка с воротковой ручкой                                            Crank-operated turn/tilt

PASK створка                                                                         Tilt/slide (PASK)

Откидная створка фрамуги                                                             Toplight

Створка вровень, пов., пов.-отк., откидная                                           Flush-fitted as SH, TT, BH

Окна с открыванием наружу                                                            Outward opening windows

Поворотная, верхнеподвесная створка                                                  Side hung, top hung

Ср/подв.и пов.створка со ср.верт.осью                                                Horizontal and vertical pivot

*Сочетание рамы и створки шириной                                                   *Outer frame / vent combination with
117/89 мм                                                                            face width 117 / 89 mm




Schüco Окно AWS 65                           Schüco Окно AWS 70.HI                      Schüco Окно AWS 75.SI
Обычная теплоизоляция                        Уменьшение потерь энергии                  Оптимизированная теплоизоляция
Schüco Window AWS 65                         Schüco Window AWS 70.HI                    Schüco Window AWS 75.SI
Conventional thermal insulation              Reduced energy losses                      Optimised thermal insulation properties
38 │ Schüco   Оконные, дверные и раздвижные системы
              Window, door and sliding systems
Оконные, дверные и раздвижные системы                   Schüco │ 39
                                      Window, door and sliding systems




Фурнитура
Fittings

            Линия ручек Schüco «Дизайн»        Schüco range of handles
            Чтобы обеспечить единство          To ensure that Schüco window,
            оформления оконных, дверных и      door and sliding systems have a
            раздвижных блоков, Schüco была     uniform style, Schüco has
            разработана комплексная линия      developed a complete range
            ручек «Дизайн» - начиная с         of handles, from manually or
            механических ручек или ручек с     electrically-operated window
            электронным управлением, ручек     handles and lift-and-slide handles
            для подъемно-раздвижных            to door handles in a variety of
            блоков, а также дверных ручек      designs.
            различной конфигурации.
            стр. 40                            Page 40




            Фурнитура Schüco AvanTec           Schüco AvanTec fittings
            Полностью скрытая фурнитура        This range of fully concealed
            не нарушает четких линий окна, и   fittings allows for simple,
            при этом функционально ничем       uncluttered lines with the same
            не уступает накладной              performance features as a
            фурнитуре.                         surface-mounted fitting.




            стр. 41                            Page 41




            Фурнитура Schüco TipTronic         Schüco TipTronic fittings
            Schüco TipTronic – это первая      Schüco TipTronic is the first fully
            система поворотно-откидной         mechatronic turn/tilt fitting and
            фурнитуры с                        combines intuitive operation in
            электромеханическими               real time with automated building
            исполнительными элементами,        technology.
            сочетающая в себе удобство
            управления в режиме реального
            времени и технологии
            автоматизации зданий.


            стр. 42                            Page 42
40 │ Schüco          Оконные, дверные и раздвижные системы
                     Window, door and sliding systems




              Линия ручек Schüco «Дизайн»
              Schüco range of handles

                                                         Единый дизайн для любых                    A handle design for all
                                                         функций                                    areas of use
                                                         Семейство универсальных ручек              A range of handles for every
                                                         с единым дизайном – потреб-                occasion with one uniform style –
                                                         ность в такой серии ощущалась              the Schüco range of feature
                                                         в промышленном, объектном и                handles perfectly meets this
                                                         жилом строительстве, и линия               requirement from residential,
                                                         ручек «Дизайн» Schüco идеально             project and commercial practice.
                                                         удовлетворяет этим потребнос-              The combination of a clear,
                                                         тям. Сочетание классических и              timeless design and efficient
                                                         современных четких линий с                 technology allows use in all
                                                         эффективной работой дает                   sorts of applications: window
                                                         возможность использовать эти               handles, lift-and-slide and tilt/slide
                                                         ручки для любых функций:                   systems, and door handles – both
                                                         устанавливать их на механичес-             manually or electrically operated.
                                                         ких и автоматических окнах,
                                                         PASK-блоках, дверях. .

              Единое гармоничное оформление ручек
              Schüco линии «Дизайн»
              A consistent style with the Schüco
              range of feature handles




         Отлично: линия ручек Schüco                     iF product design award 2006               iF product design award 2006
                            «Дизайн»                     Единая концепция дизайна                   The consistent design concept
                          Outstanding:
                                                         произвела впечатление на                   has impressed the renowned
           the Schüco range of handles
                                                         авторитетный форум                         Industry Forum Design in Hanover.
                                                         промышленного дизайна Indus-               The Schüco range of design
                                                         trie Forum Design в Ганновере:             handles has received the
                                                         ручки Schüco линии “Дизайн”                prestigious iF Award 2006.
                                                         были отмечены престижной
                                                         премией iF-Award 2006.




              Оконные ручки                             Дверные ручки                                          Ручки для раздвиж.дверей
              Handles for windows                       Door handles                                           Door pulls for sliding doors




                                                                                          GUVV




                                                                                          GUVV +

              Поверхность: нержавеющая сталь, покраска в цвета RAL, анодирование EV 1, имитация нержавеющей стали
              Finish: stainless steel, RAL colours, EV 1, stainless steel appearance
Оконные, дверные и раздвижные системы                        Schüco │ 41
                                                                             Window, door and sliding systems




Фурнитура Schüco AvanTec
Schüco AvanTec fittings

                                                                                          Schüco AvanTec
                                                                                          (взломоустойчивость WK2 и
                                                                                          WK3)
                                                                                          Четкие линии полностью скрытой
                                                                                          фурнитуры Schüco AvanTec уста-
                                                                                          навливают новые стандарты.
                                                                                          Взломоустойчивость WK1-WK3
                                                                                          гарантирует высокую безопас-
                                                                                          ность, сохраняя при этом привле-
                                                                                          кательный внешний вид.

                                                                                          Характеристики и
                                                                                          преимущества:
                                                                                          ● Модульная многоступенчатая
                                                                                            концепция взломоуст-ти с
                                                                                            блокираторами, противосъем-
                                                                                            ной защитой и высверливания
                                                                                          ● Изящная взломоустойчивая
                                                                                            ручка с замком или кнопкой
                                                                                          ● Ручка AvanTec с дистанцион-
                                                                                            ным управлением в стиле
                                                                                            Schüco
                                                                                          ● Возможна установка встраива-
                                                                                            емого магнитного выключателя
Скрытые взломоустойчивые элементы Schüco AvanTec                                            с контролем запирания
Security invisible from outside with Schüco AvanTec                                       ● Вес створки - до 130 кг



                                                                                          Schüco AvanTec with WK2 and
                                                                                          WK3 burglar resistance
                                                                                          The fully concealed Schüco
                                                                                          AvanTec fitting sets new standards
                                                                                          with its clear, unbroken lines. Even
                                                                                          for burglar resistance classes
                                                                                          WK1 to WK3, the fittings system
                                                                                          guarantees high security standards
                                                                                          without compromising design.

                                                                                          Features and benefits
                                                                                          ● Modular, multi-layer safety
                                                                                            concept with robust security
                                                                                            locking, anti-drill protection and
                                                                                            protection against levering out.
                                                                                          ● Attractive WK handle, lockable
                                                                                            or with push-button
Элемент WK2 – с минимум 4 скрытыми           Элемент WK3 – с минимум 8 скрытыми           ● Intuitive AvanTec remote control
взломоустойчивыми блокираторами              взломоустойчивыми блокираторами
                                                                                            handle in the design of the
Burglar-resistant to WK2 with a minimum of   Burglar-resistant to WK3 with a minimum of
4 concealed security locking points          8 concealed security locking points            Schüco handle range
                                                                                          ● VdS approved magnetic switch
                                                                                            for monitoring of opening and
                                                                                            closing may be integrated
                                                                                          ● Vent weights up to 130 kg
42 │ Schüco           Оконные, дверные и раздвижные системы
                      Window, door and sliding systems




              Фурнитура Schüco TipTronic
              Schüco TipTronic fittings

                                               Schüco TipTronic, класс взло-       Schüco TipTronic with WK2
                                               моустойчивости WK2                  burglar resistance
                                               Schüco TipTronic – первая           Schüco TipTronic is the first
                                               система электромеханической         fully mechatronic turn/tilt fitting,
                                               поворотно-откидной фурнитуры,       linking the whole world of building
                                               сочетающая в себе интуитивно        automation with intuitive operation.
                                               понятное управление в режиме        Both individual windows and
                                               реального времени и технологии      window groups can be
                                               автоматизации зданий.               conveniently operated by time and
                                               Как отдельные, так и объединен-     sensor controls as well as by PC,
                                               ные в группы окна можно             mobile phone or at the push of a
                                               открывать по сигналу таймера и      button. The tilt drive with its
                                               показаниям датчиков с помощью       integrated anti-finger-trap feature
                                               компьютера, мобильного телефо-      and optional connecting block
                                               на или выключателя. Откидыва-       means Schüco Tiptronic offers
                                               ющий створку привод со встроен-     twice as much security and
                                               ной защитой от защемления           comfort.
                                               пальцев и дополнительным
              Оконная ручка Schüco TipTronic
                                               блоком позволяет Schüco             Schüco TipTronic in security
              Schüco TipTronic window handle
                                               TipTronic обеспечить максималь-     class WK2 is based on the
                                               ную безопасность и удобство.        tried-and-tested, concealed
                                                                                   AvanTec security technology.
                                               Система Schüco TipTronic класса
                 Отлично: окно Schüco          WK2 использует технологию           Magnetic switches are used to
                              TipTronic        AvanTec.                            monitor and feedback on windows
                          Outstanding:
                                                                                   linked up to the building
               Schüco TipTronic window
                                               Магнитные выключатели управ-        management technology system
                                               ляют положением окна и переда-      and control any alarm systems.
                                               ют информацию в систему
                                               “умного дома” и сигнализации        Features and benefits
                                                                                   ● Modular security concept with
                                               Характеристики и                      robust security locking
                                               преимущества
                                                                                   ● Monitoring of window position
                                               ● Модульная концепция с               via bi-directional communication
                                                 прочными взломоустойчивыми          for building control as standard
                                                 блокираторами                       function (open / closed)
                                               ● Стандартная функция контро-       ● VdS approved magnetic switch
                                                 ля положения окна посредс-          for monitoring of opening and
                                                 твом двусторонней связи с           closing may be integrated
                                                 системой «умного дома»
                                                 (открыто/закрыто)                 ● High resistance to corrosion
                                                                                     through use of stainless steel
                                               ● Возможна установка встраива-        for load-bearing parts
                                                 емого в раму магнитного
                                                 выключателя контроля              ● iF product design award 2006
                                                 запирания                         ● Vent weights up to 130 kg:
                                               ● Несущие из нержавеющей              sizes w x h = 2100 x 1300 or
                                                 стали обеспечивают высокую          2500 x 1000 mm
                                                 устойчивость к коррозии
                                               ● iF product design award 2006 за
                                                 отличный дизайн
              Фурнитура Schüco TipTronic
              Schüco TipTronic fitting         ● Вес створки до 130 кг:
                                                 Размеры ш х в = 2100 x 1300
                                                 или 2500 x 1000 мм
Оконные, дверные и раздвижные системы                       Schüco │ 43
                                                                         Window, door and sliding systems




Фрамуги с фурнитурой                         Toplights with
Schüco TipTronic                             Schüco TipTronic fitting
Новая фурнитура для фрамуг                   The new Schüco toplight fitting is a
Schüco представляет собой                    convenient, mechatronic alternative
альтернативную систему с                     to manual fitting. The concealed
электромеханическими исполни-                hinge side and lack of surface-
тельными элементами. Фурниту-                mounted fittings components allow
ра полностью скрыта со стороны               for a design with narrow inner face
петель, накладные детали                     widths. In addition, the new
отсутствуют. Это позволяет                   AvanTec remote-control handle
изготавливать элементы с                     offers the option of operating
небольшой видимой шириной.                   toplights directly using TipTronic
Новая ручка AvanTec непосредс-               by remote control.
твенно управляет движением
створок с фурнитурой TipTronic с             Features and benefits
пульта дистанц.управления.
                                             ● Fully concealed system solution
                                               based on Schüco TipTronic
Характеристики и                               fitting
преимущества
                                             ● Operated via push-button,
● Системное решение для                        AvanTec remote control handle,
                                                                                    Системное решение для фрамуг: удобное
  фурнитуры Schüco TipTronic                                                        обслуживание с пульта ДУ
                                               PC and central building              System solution for toplights: easy
● Управление с помощью                         management system                    operation per remote control
  выключателя, ручки AvanTec,                ● Additional functions possible
  компьютера, ЦПУ систем
  автоматизации здания                       ● Monitoring of window position
                                               via bi-directional communication
● Возможны дополнительные                      for building management
  функции
                                             ● VdS approved magnetic switch
● Система автоматизации                        for monitoring of opening and
  здания осуществляет контроль                 closing may be integrated
  положения створки
                                             ● Vent weights up to 130 kg
● Магнитный выключатель
  контроля запирания
● Вес створки - до 130 кг



                                             Концепция неподвластного               Room design across the
                                             времени пространства                   generations
                                             Немецкое общество                      The Deutsche Gesellschaft für
                                             геронтотехники® (GGT)                  Gerontotechnik® (GGT) (German
                                             занимается вопросами жилья с           Society for Geronto Technology)
                                             точки зрения безопасности,             is concerned with comfort,
Отмечен знаком Немецкого общества
                                             функциональности и эстетики            security, functionality and good
геронтотехники® - эксперта по вопросам
комфорта и качества                          жилья. В рамках инициативы             design across the generations.
Awarded by the GGT                           LEBENS|T|RAUM BAD, в которой           The market leader initiative
(German Society for Geronto Technology) –    участвуют фирмы Busch-Jaeger,          LEBENS|T|RAUM BAD,
the expert partner for comfort and quality   Grohe, Keramag, Sam, Schüco и          (DREAM BATHROOM) which
                                             Trilux, была разработана               includes the manufacturers
                                             концепция пространственного            Busch-Jaeger, Grohe, Keramag,
                                             решения и оформления ванной            Sam, Schüco and Trilux, has
                                             комнаты. Важным элементом              developed a space concept for
                                             этой единой концепции является         bathroom design. A key component
                                             мехатронная фурнитура для              of the main concept is the
                                             поворотно-откидных окон Schüco         mechatronic Schüco TipTronic
                                             TipTronic.                             turn/tilt window fitting.
44 │ Schüco   Оконные, дверные и раздвижные системы
              Window, door and sliding systems
Оконные, дверные и раздвижные системы                   Schüco │ 45
                                           Window, door and sliding systems




Дверные системы
Door systems

                  Сетевые устройства контроля      Networked Schüco access
                  доступа Schüco для дверей.       control for door systems
                  Системами ограничения доступа    Biometric access authorisations
                  по биометрическим данным         can now be administered anywhere
                  через сеть Schüco Fingerprint    in the world online from your PC
                  можно управлять в режиме он-     using the Schüco Fingerprint
                  лайн с любого компьютера -       Network – securely, conveniently,
                  надежно, удобно и экономично.    and cost effectively.




                  стр. 46                          Page 46




                  Встроенный предохранитель        Integrated Schüco emergency
                  для дверей аварийного            door security
                  выхода Schüco                    The Schüco system now includes
                  Система Schüco предлагает        attractive emergency door locking
                  первый встроенный предохрани-    directly integrated into the door
                  тель, устанавливаемый в          profile and in immediate proximity
                  непосредственной близости от     to the emergency fitting – also in
                  фурнитуры дверей аварийного      networked online operation if
                  выхода. Может управляться в      required.
                  режиме он-лайн.


                  стр. 48                          Page 48




                  Дверные блоки с плоским          Easy access door systems
                  порогом                          The use of Schüco standard
                  Сочетание стандартных компо-     components perfectly tailored to
                  нентов Schüco, конструкция       each other allows the realisation of
                  которых идеально согласована,    simple, functional solutions for
                  позволяет находить простые,      easy access door systems with
                  функциональные решения для       clear opening dimensions.
                  дверных блоков с плоским
                  порогом, открывающихся на
                  ширину проема.


                  стр. 49                          Page 49
46 │ Schüco           Оконные, дверные и раздвижные системы
                      Window, door and sliding systems




              Сетевые устройства контроля доступа Schüco для дверных
              систем
              Networked Schüco access control for door systems
                                                             Надежные и удобные в             Comfort in security, operation
                                                             эксплуатации, с интересным       and design
                                                             дизайном                         Schüco aluminium door systems
                                                             Алюминиевые дверные системы      offer individual access control for
                                                             Schüco могут оснащаться          residential and commercial
                                                             устройствами индивидуального     buildings. The new, networked
                                                             контроля доступа для жилых и     Schüco Fingerprint system allows
                                                             коммерческих зданий. Новая       the increased demands in terms of
                                                             сетевая система доступа по       security, ease of use and low cost
                                                             отпечатку пальца позволяет       to be accommodated now and in
                                                             найти перспективные решения,     the future. As one of the most
                                                             отвечающие растущим              secure methods, this authentication
                                                             требованиям к безопасности,      by fingerprint guarantees the
                                                             комфорту и экономичности.        highest possible level of protection
                                                             Идентификация по отпечатку       in comparison with conventional
                                                             пальца является одним из         methods. The Schüco Fingerprint
                                                             наиболее эффективных             system integrated with the door
                                                             современных методов              profile offers new design options
                                                             обеспечения безопасности.        and impressive user comfort.
                                                             Кроме того, встраиваемая в
                                                             дверной профиль система
                                                             Schüco Fingerprint расширяет
                       Schüco Fingerprint с устройством
                                                             возможности дизайна и
                            считывания магнитных карт        предоставляет дополнительные
                 Schüco Fingerprint system with integrated   удобства.
                                               row sensor




                                                                                              Устанавливаемый на стене внешний блок
                                                                                              Surface-mounted external unit




              Накладные блоки системы Schüco Fingerprint гарантируют безопасность и комфорт
              Add-on system solutions with Schüco Fingerprint ensure security and comfort
Оконные, дверные и раздвижные системы                    Schüco │ 47
                                                                      Window, door and sliding systems




                                                                                Сеть Schüco Fingerprint
                                                                                Сетевые системы требуются там,
                                                                                где ограничен доступ в здания, к
                                                                                лифтам или архивам. Система
                                                                                Schüco Fingerprint состоит из
                                                                                сервера терминала,
                                                                                соединенного локальной сетью с
                                                                                отдельными терминалами
                                                                                (дверными датчиками).
                                                                                Предоставление права доступа,
                                                                                регистрация новых
                                                                                пользователей и
                                                                                администрирование сети
                                                                                осуществляются
                                                                                централизованно с помощью
                                                                                программы Schüco Admin,
                                                                                устанавливаемой на любом
                                                                                компьютере в любой точке мира.

                                                                                Schüco Fingerprint Network
                                                                                Networked systems should be
                                                                                used everywhere where, for
Новые пользователи регистрируются с помощью компьютера                          security-sensitive areas such as
New users can be created from the comfort of a PC                               main entrances, lifts and archives,
                                                                                there is a need for individual
                                                                                access authorisation. The Schüco
                                                                                Fingerprint system consists of a
                                                                                terminal server which
Характеристики и                         Features and benefits                  communicates with the individual
преимущества                                                                    terminals (door sensors) per
                                         ● Direct user identification allows
                                                                                LAN connection. Assignment and
● Непосредственная                         personalised information to be
                                                                                cancellation of access rights,
  идентификация пользователя               logged
                                                                                creation of new users and user
  дает возможность отслеживать           ● Keys may no longer be                administration is performed using
  его действия                             forgotten, lost or copied            Schüco Admin software simply and
● Ключ невозможно забыть,                ● Alarm finger function: certain       centrally on a PC – from any
  потерять или передать                    fingerprints can trigger silent      location anywhere in the world.
● Сигнализация: некоторые                  alarms on doors
  отпечатки пальцев запускают            ● Easy importing of user data
  беззвучный сигнал тревоги                using USB finger scanner on PC
● Через USB-сканер отпечатки             ● Combination options with
  пальцев передаются на                    existing door speaker systems,
  компьютер                                code locks or card-reading
● Совместимость с                          devices
  переговорными устройствами,            ● Integration in an existing network
  кодовыми замками или                     via RS485 / LAN converter
  замками на магнитных картах
                                         ● Profile-integrated or add-on
● Подключение к сети через                 system solutions
  конвертор RS485 / LAN
● Системы со встроенными в
  профиль или накладными
  устройствами
48 │ Schüco           Оконные, дверные и раздвижные системы
                      Window, door and sliding systems




              Предохранитель для дверей аварийного выхода Schüco
              Integrated Schüco emergency door security

              В стандартных системах устанав-              Conventional systems prevent
              ливаемые отдельно от дверного                incorrect use of emergency doors
              блока предохранители препятс-                through security devices outside
              твуют несанкционированному                   the door constructions – attached
              использованию дверей аварий-                 to the wall often more than one
              ного выхода. Предохранитель                  metre away. The new Schüco
              чаще всего устанавливается на                emergency door system is a
              стене более чем в метре от                   brand-new solution integrated in
              двери. Новый предохранитель                  the door profile with emergency
              Schüco впервые предлагает                    button located directly on the
              встроенное в дверной профиль                 emergency fitting. This allows
              устройство с аварийной кнопкой               faster operation both on site and
              на фурнитуре. Это позволяет                  via networked online operation,
              быстро открыть дверь как                     thereby optimising building security.   Встроенный предохранитель двери
                                                                                                   аварийного выхода Schüco с
              находясь непосредственно перед
                                                                                                   аварийной кнопкой в непосредственной
              ней, так и передав соответствую-
                                                                                                   близости от дверной фурнитуры.
              щую команду по сети, что                                                             Integrated Schüco emergency door
              оптимизирует уровень безопас-                                                        operation with emergency button in
              ности здания.                                                                        immediate proximity to anti-panic fitting



                                                                                                   Характеристики и
                                                                                                   преимущества
                                                                                                   ● Блокировка двери аварийного
                                                                                                     выхода в непосредственной
                                                                                                     близости от фурнитуры
                                                                                                     аварийной двери
                                                                                                   ● Сертифицировано для сетевой
                                                                                                     он-лайн работы в соответствии
                                                                                                     с Elt VTR-RL
                                                                                                   ● Подключение к системам
                                                                                                     автоматизации здания: напр., к
                                                                                                     сигнализации или системе
                                                                                                     ограничения доступа
                                                                                                   ● Ширина проема не
                                                                                                     ограничивается
                                                                                                     вертикальными элементами

                                                                                                   Features and benefits
                                                                                                   ● Emergency door security in
                                                                                                     direct proximity to panic fitting
              Объединенные в сеть системные решения                                                ● Approved in accordance with
              гарантируют высокий уровень
                                                                                                     Elt VTR-RLOnline system for
              безопасности здания.
              High building security through integration                                             networked operation
              of networked system solutions                                                        ● Integration in building network
                                                                                                     technology, e.g. connection to
                                                                                                     warning systems or access
                                                                                                     control
                                                                                                   ● No limitation of access width by
                                                                                                     pillars
Оконные, дверные и раздвижные системы                   Schüco │ 49
                                                              Window, door and sliding systems




Дверные блоки с плоским порогом
Easy access door systems

                                                                      В общественных зданиях в
                                                                      Германии, например, офисах,
                                                                      больницах, а также домах
                                                                      престарелых и медицинских
                                                                      учреждениях обязательно
                                                                      должны использоваться двери с
                                                                      плоским порогом. В частных
                                                                      домах все больше людей
                                                                      придает значение отсутствию
                                                                      порогов. Schüco предлагает
                                                                      согласованные комплексные
                                                                      решения, включающие
                                                                      стандартные элементы для
                                                                      простого и эффективного
                                                                      проектирования дверей с
                                                                      плоским порогом,
                                                                      соответствующих требованиям,
                                                                      предъявляемым к
                                                                      общественным, частным и
                                                                      производственным зданиям.

                                                                      In Germany, equality laws
                                                                      necessitate that public buildings
                                                                      such as offices, hospitals and old
                                                                      people’s homes must have easy
                                                                      access. In residential buildings,
Дверной блок с плоским порогом и
                                                                      easy access living is a matter of
скрытыми петлями
Easy access door system with
                                                                      importance for more and more
concealed hinge                                                       people. Schüco supplies inclusive
                                                                      solutions from combined standard
                                                                      components for simple and efficient
                                                                      planning of easy access door
                                                                      systems – for all types of building,
                                                                      whether public, private and
                                                                      commercial.
Характеристики и                   Features and benefits
преимущества                       ● Harmonised total solution for
● Комплексное решение для            easy access construction
  зданий с плоскими порогами       ● Concealed door hinge for
● Скрытые петли позволяют            completely clear opening
  использовать проем целиком         dimensions
● Сочетание входных систем без     ● Simple implementation of an
  ключа или с дист.управлением,      automatic door system through
  приводов поворотных дверей и       system combination of keyless
  ригельных замков с защелкой        entry or remote system, swing
  Schüco SafeMatic упрощают          door motor and Schüco
  установку автоматич.дверей.        SafeMatic latch-and-bolt lock
● Самоблокирующийся ригель-        ● Self-locking Schüco SafeMatic
  ный замок с защелкой Schüco        latch-and-bolt lock with lever
  SafeMatic и ручкой на высоте       door handle at 850 mm in
  850 мм (DIN 18024)                 accordance with DIN 18024
● Нижняя часть без порога с        ● Easy access threshold with
  уплотнителем автоматической        automatic door seal
  двери
50 │ Schüco   Оконные, дверные и раздвижные системы
              Window, door and sliding systems
Оконные, дверные и раздвижные системы                    Schüco │ 51
                                          Window, door and sliding systems




Раздвижные системы
Sliding systems

                 Система приводов Schüco          Schüco e-slide drive system for
                 e-slide для раздвижных дверей    sliding door systems
                 Новаторский дизайн без ручки     Innovative handle-less design with
                 при максимальном удобстве        maximum user comfort – Schüco
                 пользования: с автоматическими   e-slide sets new standards through
                 устройствами для раздвижных и    automation of large sliding and
                 подъемно-раздвижных дверей       lift-and-slide units.
                 большой площади Schüco e-slide
                 устанавливает новые стандарты.



                 стр. 52                          Page 52




                 Автоматическая раздвижная        Schüco ASS 65 automatic
                 дверь Schüco ASS 65 automatic    sliding door
                 Удобное и элегантное             Comfort and design-oriented
                 комплексное решение от Schüco,   Schüco complete solution for
                 предназначенное для входных      entrance areas with high volume
                 групп в зданиях с интенсивными   traffic – system tested from a single
                 людскими потоками, прошло        source.
                 системную проверку и
                 поставляется «из одних рук».



                 стр. 54                          Page 54
52 │ Schüco         Оконные, дверные и раздвижные системы
                    Window, door and sliding systems




              Система приводов Schüco e-slide для раздвижных дверей
              Schüco e-slide drive system for sliding door systems




                                                                                        Большие прозрачные открывающиеся
                                                                                        элементы с простым управлением
                                                                                        Large, transparent opening units with
                                                                                        excellent ease of operation
              Автоматическая, полностью         Opening, closing and locking
              скрытая система Schüco e-slide    large-format sliding and lift-and-
              позволяет без усилий открывать,   slide units – automatically using the
              закрывать и запирать              fully concealed Schüco e-slide
              раздвижные и подъемно-            system. The integration of all drive
              раздвижные элементы. Все          components into the leaf of the
              элементы привода встроены в       Royal S 120+ and Royal S 160.HI
              створки систем Royal S 120+ и     systems allows for completely new
              Royal S 160.HI, что позволяет     handle-less design solutions with
              создать совершенно новые          streamlined appearance. The leaf
              конструкции с четкими линиями     units slide quietly using powerful
              без дверных ручек. Мощными        motors that can be controlled via
              приводами беззвучно скользящих    an operating panel integrated in the
              створок удобно управлять с        leaf, buttons located elsewhere in
              помощью встроенного в створку     the room, or centrally using
              блока, выключателя в              building management technology.
              помещении или центрального
              блока управления системами
              автоматизации здания.
Оконные, дверные и раздвижные системы                   Schüco │ 53
                                                              Window, door and sliding systems




Характеристики и                 Features and benefits
преимущества                     ● Concealed, profile-integrated
● Встроенная в профиль скры-       motorised fittings system for
  тая система приводов для         lift-and-slide systems
  подъемно-раздвижных (Royal       (Royal S 160.HI, Royal S 120+)
  S 160.HI, Royal S 120+) и        and sliding systems
  раздвижных систем                (Royal S 120+)
  (Royal S 120+)                 ● New, handle-free design
● Новый дизайн с четкими           solutions with clear, unbroken
  линиями без дверных ручек        lines
● Внутренняя и наружная          ● Differently coloured profile
  поверхности могут быть           surfaces (inside and outside)
  выполнены в разных цветах      ● Leaf weights up to 250 kg
● Вес створки – до 250 кг        ● Leaf sizes up to
● Максимальный размер створок      3000 mm x 3000 mm
  3000 мм х 3000 мм              ● Comfort functions,
● Дополнительные функции,          e.g. night ventilation
  напр., щелевое проветривание   ● Intelligent software protects
● Безопасность людей,              persons, objects or motors
  конструкций и самих приводов     against excessive load and
  обеспечивает программа,          reversal of motor
  реагирующая на перегрузки и    ● Can be controlled through
  изменение хода привода           building management                Плоская панель управления
                                                                      Flat control panel
● Управляется системами            technology
  автоматизации здания           ● Additional security through
● Устройство контроля движения     monitored leaf operation
  створок (опция) для              (optional)
  дополнительной надежности
                                                                      Подъемно-раздв. блок Royal S 160.HI
                                                                      Lift-and-slide system Royal S 160.HI




Масштаб 1:2
Scale 1:2
54 │ Schüco           Оконные, дверные и раздвижные системы
                      Window, door and sliding systems




              Автоматическая раздвижная дверь Schüco ASS 65 automatic
              Schüco ASS 65 automatic sliding door




              Комплексное элегантное системное
              решение входных групп
              Comprehensive, elegant system solution
              for entrance area




                                                       Удобные и элегантные входные      Comfortable, attractively designed
                                                       группы можно полностью            entrance areas can be realised
                                                       автоматизировать с помощью        using the complete Schüco ASS 65
                                                       комплексной системы Schüco        automatic sliding door system. With
                                                       ASS 65 automatic. Совместимость   its harmonised components, the
                                                       элементов позволяет создавать     tested systems solution with
                                                       проверенные системные             optimised interfaces offers the
                                                       решения с оптимизированной        utmost in security and reliability,
                                                       конструкцией соединений,          including for buildings with high
                                                       обеспечивающие максимальную       volumes of people such as retail
                                                       безопасность и надежность в       stores.
                                                       местах с интенсивным людским
                                                       потоком, например, в
                                                       предприятиях розничной
                                                       торговли.
Оконные, дверные и раздвижные системы                      Schüco │ 55
                                Window, door and sliding systems




Вертикальное сечение привода
автоматической раздвижной конструкции
Schüco ASS 65 automatic
Vertical section through the motor of the
Schüco ASS 65 automatic sliding system




                                            Масштаб 1:2
                                            Scale 1:2




Характеристики и                            Features and benefits
преимущества                                ● Complete system, consisting of
● Комплексная система, вкл.                   aluminium profiles and motor
  алюминиевые профили,                        with all control and security
  привод, элементы управления                 components
  и взломоустойчивые эл-ты                  ● Door profiles in thermally
● Дверные профили с/без                       insulated and non-thermally
  теплоизоляции                               insulated versions
● Удобные проемы двери                      ● Comfortable opening dimensions
  шириной до 3000 мм                          of up to 3000 mm possible
● Одно- или двустворчатые                   ● Large single and double-leaf
  двери (макс.100 кг) большой                 door systems with max. 100 kg
  площади                                     leaf weight
● Система cоответствует                     ● Door system tested in
  требованиям DIN 18650                       accordance with DIN 18650
● Сертификат пригодности для                ● Approved for emergency exits
  путей эвакуации и аварийных                 and escape routes (optional)
  выходов (опция)                           ● A variety of convenience
● Различные дополнительные                    functions, e.g. sliding doors and
  удобные функции, например,                  use as porch
  раздвижные двери или
  перегородки
56 │ Schüco         Фасады и зимние сады
                    Façades and conservatory systems




              Фасады и зимние сады
              Façades and conservatory systems

              Современные фасады придают        Modern façade design endows a
              зданию индивидуальность,          building with character and makes
              делают его привлекательным, а     it attractive to the eye, whilst also
              также отражают его функцио-       expressing its function and
              нальность и эффективность.        efficiency. Schüco façade systems
              Фасадные системы Schüco           fulfil the highest architectural
              соответствуют высочайшим          standards in terms of design,
              требованиям к дизайну, техноло-   engineering and functionality, and
              гии и функциональности. Они       have proved themselves at an
              прекрасно зарекомендовали         international level. Compatibility
              себя на практике в разных         with all Schüco systems, including
              странах мира. Совместимость с     the new Schüco AWS window
              системами Schüco, вкл. новые      range, reliable planning and
              оконные системы Schüco Окно       fabrication, and a high level of
              AWS, качественное проектирова-    design freedom offer unique
              ние и изготовление, а также       benefits to both architects and
              широкий спектр вариантов          planners.
              оформления предлагают архи-
              текторам и проектировщикам
              уникальные возможности.




                                                Schüco Фасад SFC 85                     Schüco Фасад FW 60+SG
                                                Schüco Façade SFC 85                    Schüco Façade FW 60+SG

                                                Schüco Фасад SFC 85 предлагает          Дополнение к системе FW 60+SG
                                                новые решения фасадов со                сделало возможным возведение
                                                структурным остеклением. В              идеально плоских стеклянных
                                                качестве возможных вариантов            фасадов. При этом допускается
                                                предлагаются три типа остекле-          изготовление тяжелых блоков со
                                                ния с соответствующим штапи-            стеклом большой площади. .
                                                ком.
                                                                                        The FW 60+SG system
                                                The Schüco Façade SFC 85 offers         enhancement allows the
                                                new solutions for the construction      construction of flush-fitted glass
                                                of structural glazing façades.          façades, making even very large
                                                Three glazing types (including          and heavy glazing a reality.
                                                glazing bead options) are available.



                                                стр. 58                                 стр. 60
                                                Page 58                                 Page 60
Фасады и зимние сады     Schüco │ 57
                                                               Façades and conservatory systems




Schüco Фасад SMC 50                Schüco Зимний сад COC 50
Schüco Façade SMC 50               Schüco Conservatory COC 50

Модульная фасадная система         Новая система модульных
обеспечивает оптимальный           зимних садов на основе фасад-
уровень теплоизоляции при          ной системы Schüco SMC 50.
минимальных затратах.
                                   Innovative conservatory system
The modular façade system offers   with modular construction, based
optimised thermal insulation as    on the Schüco SMC 50 façade
cost effectively as possible.      system.




стр. 62                            стр. 64
Page 62                            Page 64
58 │ Schüco           Фасады и зимние сады
                      Façades and conservatory systems




              Schüco Фасад SFC 85
              Schüco Façade SFC 85

                                                            Фасадная система
                                                            Schüco SFC 85 – это новый
                                                            вариант фасада со структурным
                                                            остеклением со встроенными в
                                                            несущие конструкции элемента-
                                                            ми открывания. Новое поколение
                                                            фурнитуры, установленной в
                                                            несущей конструкции, позволяет
                                                            устанавливать створки весом до
                                                            250 кг.

                                                            The Schüco SFC 85 façade system
                                                            is a new version of the all-glass
                                                            façade where the opening units are
                                                            integrated with the support
                                                            structure. A new generation of
                                                            fittings incorporated into the
                                                            support structure allows the
                                                            integration of vents weighing up
                                                            to 250 kg.




              Новый фасад со структурным остеклением
              Schüco SFC 85
              New Schüco SFC 85 structural glazing façade




                                                            Вертикальное сечение со
                                                            ступенчатым стеклопакетом и
                                                            встроенным приводом
                                                            открывания
                                                            Vertical section with stepped
                                                            glazing unit and integrated
                                                            opening motor


              Масштаб 1:2
              Scale 1:2
Фасады и зимние сады                        Schüco │ 59
                                                                                 Façades and conservatory systems




                                                                                                                             Масштаб 1:2
                                                                                                                             Scale 1:2




Горизонтальное сечение со стандартными                        Горизонтальное сечение со стеклопакетом и штапиком
стеклопакетами                                                Horizontal section with double glazed unit and glazing beads
Horizontal section with standard glazing unit

Характеристики и                                Features and benefits
преимущества
                                                ● Structural glazing façade with
● Фасад со структурным остек-                     thermal break
  лением с терморазрывом
                                                ● Opening units fully integrated
● Полностью встроенные в                          into the load-bearing structure,
  несущие конструкции элемен-
                                                  also in combination with
  ты открывания, в т.ч. в сочета-
                                                  concealed motor drive
  нии со скрытым эл/приводом
● Видимая ширина 85 мм                          ● 85 mm face width

● Три типа остекления (ступен-                  ● Three glazing types (stepped
  чатый стеклопакет, стандарт-                    double glazing, standard double
  ный стеклопакет и штапик)                       glazing and glazing beads) allow
  обеспечивают простор для                        for a great deal of design
  разнообразных дизайнерских                      freedom
  решений
                                                ● New generation of vent fittings:
● Новое поколение фурнитуры:                      vent weights up to 250 kg
  вес створки может достигать                     possible
  250 кг
                                                ● Schüco AWS 102 window insert
● Из вставных элементов Schüco
                                                  unit as projected top-hung
  Окно AWS 102 изготавливают-
  ся верхнеподвесные или                          window or parallel-opening
  параллельно-отставные окна                      window
60 │ Schüco           Фасады и зимние сады
                      Façades and conservatory systems




          Schüco Фасад FW 60+SG
          Schüco Façade FW 60+SG

              Schüco Фасад FW 60+SG допол-                  The Schüco Façade FW 60+SG is
              няет зарекомендовавшую себя                   an enhancement to the tried-and-
              на практике фасадную систему                  tested all-glass FW 50+SG façade
              со структурным остеклением                    system. The new system uses the
              FW 50+SG. Новая система                       comprehensive range of load-
              использует обширный ассорти-
                                                            bearing structures of the FW 60+
              мент несущих конструкций
                                                            basic system. The flush structural
              базовой системы FW 60+.
              Гладкая поверхность структурно-               glazing appearance is achieved
              го остекления достигается                     through use of the modified system
              благодаря использованию                       components of the FW 50+SG
              модифицированых системных                     façade.
              элементов FW 50+SG

                                                                                                 Фасад со структурным остеклением
                                                                                                 FW 60+SG
                                                                                                 FW 60+SG all-glass façade




                                                                                       Масштаб 1:2
                                                                                       Scale 1:2
              Вертикальное сечение с новым плоским
              остеклением с исп.уплотнителей и мостов
              для ст/пакетов до 380 кг
              Vertical section with new, flush-fitted dry
              glazing and heavy duty glazing supports up
              to 380 kg
Фасады и зимние сады        Schüco │ 61
                                                                             Façades and conservatory systems




                60




                                    105
                                    8 11
                                    20
                                    6




                                                                                                     Масштаб 1:2
                20
                                                                                                     Scale 1:2

Горизонтальное сечение с П-образ-          Горизонтальное сечение с новым плоским
ным остеклением с использованием           остеклением с использованием
уплотнителей                               уплотнителей и элемент открывания
Horizontal section with U-shaped           Schüco Окно AWS 102
dry glazing                                Horizontal section with new, flush-fitted
                                           dry glazing and Schüco Window AWS 102
                                           opening unit




Характеристики и                           Features and benefits
преимущества                               ● Structural glazing façade for
● Фасад со структурным                       glazing weights up to
  остеклением для стекол весом               max. 380 kg
  до 380 кг                                ● Extended combination options of
● Дополнительные возможности                 glazing thickness of internal and
  комбинирования внешних и                   external pane (6, 8, 10, 12 and
  внутренних стекол (6, 8, 10, 12            14 mm) for a gap between panes
  и 14 мм) с дистанционной                   of 20 mm
  рамкой 20 мм                             ● Schüco Window AWS 102 in
● Вставные теплоизолирован-                  insulated version with greatly
  ные элементы Schüco Окно                   improved Uf value of
  AWS 102 со значительно                     up to 2.78 W/m²K
  улучшенным Uf до 2,78 Вт/м²K             ● Especially low-cost,
● Schüco Окно AWS 102                        non-insulated version of
  поставляется также в                       Schüco Window AWS 102 also
  экономичном исполнении без                 available
  теплоизоляции                            ● New generation of fittings for
● Новая фурнитура для створок                vent weights up to 250 kg
  весом до 250 кг                          ● Flush-fitted silicone dry sealing
● Силиконовый уплотнитель для
  плоских конструкций
62 │ Schüco          Фасады и зимние сады
                     Façades and conservatory systems




              Schüco Фасад SMC 50
              Schüco Façade SMC 50

              Новая система модульных
              фасадов Schüco SMC 50 облада-
              ет отличными теплоизолирующи-
              ми свойствами и отличается
              высочайшим качеством и систем-
              ной надежностью при минималь-
              ных сроках изготовления.
                                     .

              The new Schüco SMC 50 modular
              façade system offers impressive
              thermal insulation properties,
              excellent quality, and through its
              system security – as well as the
              shortest fabrication times.




                                                     Модульный фасад Schüco SMC 50
                                                     Schüco SMC 50 modular façade




                                                                                            Масштаб 1:2
                                                                                            Scale 1:2

              Горизонтальное сечение Schüco SMC 50   Горизонтальное сечение
              Schüco SMC 50: horizontal section      Schüco SMC 50.HI
                                                     Schüco SMC 50.HI: horizontal section
Фасады и зимние сады            Schüco │ 63
                                                                  Façades and conservatory systems




Принцип конструкции фасада
Модульный фасад Schüco, в
отличие от традиционного
фасада, состоящего из множест-                                 Модуль 1 – статический модуль
                                                               ● Одинаковые профили стоек и ригелей
ва отдельных деталей, включает
                                                               ● Острые ребра профилей при незначи-
все три основных блока, постав-                                  тельном радиусе скругления – 0,5 мм
ляемых практически полностью                                   Module 1 – structural module
собранными:                                                    ● Same mullion and transom profiles
                                                               ● Sharp-edged appearance with small
                                                                 profile radii of 0.5 mm
Модуль 1 – статика
Модуль 2 – теплоизоляция и
           герметизация
Модуль 3 – декоративная
           функция
                                                               Модуль 2 – функциональный модуль
                                                               ● Профиль для водоотвода с протянутым
                                                                 уплотнителем и изоляционным блоком
Façade design                                                  ● Принцип перекрывающихся уплотните-
Unlike a conventional façade                                     лей для водоотвода
                                                               Module 2 – function module
consisting of numerous individual
                                                               ● Drainage profile with inserted seal and
components, the Schüco modular                                   insulation block
façade consists of only three                                  ● Overlapping drainage design
modules, each prefabricated to a
large degree:                                                  Модуль 3 – декоративный модуль
                                                               ● Прижимной профиль с протянутым упл.
Module 1 for structural                                        ● Обширный ассортимент накладок для
         components                                              любого архитектурного решения
Module 2 for thermal insulation                                • Видимая ширина 50 мм
                                    Масштаб 1:2                Module 3 – design module
         and sealing                Scale 1:2                  ● Pressure plate with inserted gasket
Module 3 for the design                                        ● Varied range of cover caps to suit every
                                                                 architectural requirement
                                                               ● 50 mm face width
Характеристики и                    Features and benefits
преимущества
                                    ● High energy savings thanks to
● Очень низкое значение Uf            extremely low Uf values
  обеспечивает максимальное
  энергосбережение                  ● Top quality and system
● Высокая степень предвари-           security through high level of
  тельной сборки гарантирует          prefabrication
  отличное качество и систем-
                                    ● Greatly reduced fabrication
  ную надежность
                                      times
● Значительное сокращение
  времени изготовления              ● Identical inner face width of
● Внутренние уплотнители стоек        mullion and transom seals
  и ригелей выглядят одинаково      ● May be combined with all
● Возможность сочетания с             invisible screw-fitted cover caps
  любыми накладками со скры-          belonging to FW 50+ façade
  тыми винтовыми соединения-
                                      system
  ми фасадной системы FW 50+
● Внутренние и наружные             ● Inner and outer glazing rebate
  уплотнители стеклопакета            gaskets are inserted at the
  устанавливаются на произ-           factory
  водстве
                                    ● Straight-cut transom profiles
● Раскрой ригельных профилей          without loss of the overlap
  под прямым углом при соблю-
                                      drainage principle
  дении принципа перекрываю-
  щихся уплотнителей при
  водоотводе
64 │ Schüco          Фасады и зимние сады
                     Façades and conservatory systems




              Schüco Зимний сад COC 50
              Schüco Conservatory COC 50

              Новая система для зимних садов                                     Горизонтальное сечение
              Schüco COC 50 – результат                                          стропил с высокой
                                                                                 теплоизоляцией
              последовательного развития
                                                                                 Horizontal section
              системы для зимних садов WI 60                                     through the highly
              на основе новой модульной                                          insulated rafters
              фасадной системы
              Schüco SMC 50. Результат:
              высокая степень предваритель-
              ной сборки обеспечивает
              отличную теплоизоляцию в
              сочетании с высоким системным
              качеством и надежностью.

              The Schüco COC 50 system is a
              new and innovative conservatory
              construction and the logical
              development of the WI 60
              conservatory system based on the
              new Schüco SMC 50 modular
              façade system. The result:
              outstanding thermal insulation plus
              optimised system quality and
              security thanks to a high level of
              prefabrication of individual
              components.                                                        Масштаб 1:2
                                                                                 Scale 1:2




                                                    Schüco Зимний сад COC 50
                                                    Schüco Conservatory COC 50
Фасады и зимние сады               Schüco │ 65
                                                                          Façades and conservatory systems




                                                                                  Масштаб 1:5
                                                                                  Scale 1:5



Вертикальное сечение свеса и конька
Vertical section through eaves and ridge point



                                                 Характеристики и                 Features and benefits
                                                 преимущества                     ● Attractive, elegant conservatory
                                                 ● Изящная, легкая конструкция      construction through 50 mm face
                                                   зимнего сада с крышными          width of roof profiles
                                                   профилями с видимой
                                                   шириной 50 мм                  ● Outstanding thermal insulation
                                                 ● Низкие значения Uf стропил и     through low Uf values of eaves
                                                   карнизов обеспечивают            and rafters
                                                   превосходную теплоизоляцию     ● Optimised system quality and
                                                 ● Предварительная сборка           security through high level of
                                                   гарантирует оптимальное          prefabrication
                                                   качество и системную
                                                   надежность                     ● Modular construction of roof
                                                 ● Модульная конструкция            profiles and eaves with minimal
                                                   профилей крыши и желоба с        number of individual
                                                   небольшим количеством            components
                                                   деталей
                                                                                  ● All usual conservatory types may
                                                 ● Возможно изготовление
                                                                                    be constructed
                                                   зимних садов всех известных
                                                   типов                          ● Flexible construction options
                                                 ● Разнообразие конструкций         through:
                                                   обеспечивают:                    ● 2 eaves and rafter
                                                   ● 2 варианта карнизов и            combinations
                                                     коньков                        ● 2 gutter types
                                                   ● 2 типа желобов
                                                                                    ● 2 construction heights
                                                   ● 2 монтажных высоты (125 и
                                                     105 мм) профилей стропил,        (125 and 105 mm) of rafter
                                                     возможна установка               profiles with multiple
                                                     различных усилителей             reinforcement options
66 │ Schüco   Огнестойкие и дымозащитные системы
              Fire and smoke protection systems
Огнестойкие и дымозащитные системы                Schüco │ 67
                                                                   Fire and smoke protection systems




Огнестойкие и дымозащитные системы
Fire and smoke protection systems

Schüco предлагает множество             In the realm of security, Schüco
конструкций, обеспечивающих             aluminium systems for fire and
комплексную безопасность                smoke protection represent a
здания, в т.ч. огнестойкие и            comprehensive range of products
дымозащитные алюминиевые                for well-protected buildings. These
системы. Актуальным                     systems have now been expanded
дополнением стали системные             to include system solutions for
решения, обеспечивающие                 natural smoke and heat extraction
естественный дымо- и                    systems tested in accordance with
теплоотвод.                             European standards.




Нормы и инструкции,                     Сертифицированное                     Сертифицированное
регулирующие применение                 системное решение дымо- и             системное решение дымо- и
устройств дымо- и теплоотвода           теплоотвода с                         теплоотвода с окном с жалюзи
Standards and guidelines for            верхнеподвесным окном                 Certified SHEVS system solution
smoke and heat ventilation              Certified SHEVS system solution       with louvred window
systems                                 with projected top-hung window

DIN EN 12101-2: действующая             Верхнеподвесное Schüco Oкно           Теплоизолированное
норма для устройств                     AWS 102 для дымо- и тепло-            алюминиевое окно с жалюзи –
естественного дымо- и
теплоотвода для вертикальных            отвода.                               системное решение для
фасадов и светопрозрачных                                                     устройств дымо- и теплоотвода
крыш.                                   Schüco Window AWS 102 as              Schüco.
                                        projected top-hung window unit
DIN EN 12101-2: the current             for heat and smoke extraction         Thermally insulated louvred
standard for natural smoke and          systems.                              window unit made of aluminium
heat ventilation systems for vertical
façades and skylights.                                                        as system solution with Schüco
                                                                              smoke and heat extraction
                                                                              systems.
стр. 68                                 стр. 69                               стр. 70
Page 68                                 Page 69                               Page 70
68 │ Schüco           Огнестойкие и дымозащитные системы
                      Fire and smoke protection systems




              Нормы и инструкции по применению устройств дымо- и
              теплоотвода
              Standards and guidelines for smoke and heat ventilation systems
                                                            DIN EN 12101-2                    DIN EN 12101-2
                                                            Устройства дымо- и теплоотвода    For skylights fitted to roofs pitched
                                                            для светопрозрачных крыш с        at between 0° and 25°, smoke and
                                                            углом наклона кровли от 0° до     heat ventilation systems have so
                                                            25° до сих пор проверялись на     far been tested to DIN 18232-3.
                                                            соответствие норме DIN 18232-3.
                                                                                              For vertical façades and for skylight
                                                            К светопрозрачным крышам с
                                                                                              constructions fitted to roofs pitched
                                                            углом наклона кровли более 25°,
                                                            а также к вертикальным фасадам    at an angle greater than 25°,
                                                            норма DIN 18232-3 непримени-      DIN 18232-3 could not be applied.
                                                            ма.
                                                                                              Since September 2003, the test
                                                            Стандарт DIN EN 12101-2 с         criteria for NRWGs (Natural Smoke
                                                            сентября 2003 года регулирует     and Heat Extraction Devices) for
                                                            критерии испытаний для уст-       vertical façades and skylights
                                                            ройств естественного дымо- и      has been regulated by
                                                            теплоотвода для вертикальных      DIN EN 12101-2. (Coexistence
                                                            фасадов и светопрозрачных
                                                                                              phase with DIN 18232-3 ends on
                                                            крыш. (Период одновременного
                                                                                              31 August 2006)
                                                            действия с нормой DIN 18232-3
                                                            заканчивается 31.06.2006 г.).
                                                                                              In both these areas, approved
                                                            В обоих случаях необходимо        system solutions consisting of
                                                            использовать системные реше-      window and motor must be used
                                                            ния, включающие оконный блок и    and it must be ensured that
                                                            привод. При этом отдельные        individual system components from
                                                            системные компоненты, прохо-      the tested system solution, such as
                                                            дившие испытания в составе        motor, vent bracket, consoles or
              VELTINS-Arena, Гайзенкирхен, Германия
              VELTINS-Arena, Gelsenkirchen, Germany
                                                            единого целого, напр., привод,    windows are not substituted.
                                                            опора створки, кронштейн или
                                                            окно, не могут быть заменены.
                                                                                              As has already been the case for
                                                            Нормы для изготовления и          years with fire protection doors, for
                                                            контроля устройств дымо- и        NRWGs to be manufactured and
                                                            теплоотвода требуют (этот метод   monitored in line with the relevant
                                                            зарекомендовал себя при           standards, external and internal
                                                            производстве огнестойких          quality control is required and the
                                                            дверей) внутреннего и внешнего    units must also be CE marked.
              Маркировка CE
                                                            контроля качества, а также
              CE marking
                                                            наличия маркировки СЕ на
                                                            элементах.




                                                            Системные решения Schüco          Schüco system solutions
                                                            В качестве проверенных            As tested system solutions, Schüco
                                                            системных решений устройства      smoke and fire protection systems
                                                            дымо- и теплоотвода Schüco        already meet this standard and
                                                            соответствуют требованиям         therefore offer architects, planners,
                                                            данной нормы и таким образом      fabricators and clients the best
                                                            обеспечивают оптимальную          possible solution in terms of
                                                            надежность проектирования и       security of planning and operation,
                                                            производства, а также             and also effective protection for
              Системные решения Schüco RWA прошли           безопасность для людей и          people and property.
              испытания в соответствии с европейской        материальных ценностей.
              нормой DIN EN 12101-2
              Schüco SHEVS system solutions have been
              tested in accordance with European standard
              DIN EN 12101-2
Огнестойкие и дымозащитные системы                  Schüco │ 69
                                                                 Fire and smoke protection systems




Сертифицированная конструкция дымо- и теплоотвода с
верхнеподвесным окном
Certified SHEVS system solution with projected top-hung window
                                                                         Новый верхнеподвесной оконный
                                                                         блок Schüco Окно AWS 102 – еще
                                                                         одно проверенное системное
                                                                         решение для устройств дымо- и
                                                                         теплоотвода, встраиваемое в
                                                                         стандартные фасады
                                                                         Schüco FW 50+ и FW 60+.
                                                                         Верхнеподвесные окна в случае
                                                                         пожара быстро открываются с
                                                                         помощью надежных, прошедших
                                                                         многократные испытания цепных
                                                                         приводов Schüco.

                                                                         The new Schüco Window AWS 102
                                                                         as projected top-hung unit
                                                                         represents an additional certified
                                                                         system solution for smoke and heat
                                                                         extraction systems – that can be
                                                                         used in Schüco FW 50+ and
                                                                         FW 60+ standard façades. The
                                                                         Schüco chain-driven motors are
                                                                         subjected to rigorous testing to
                                                                         ensure that projected top-hung
                                                                         window units open reliably and
                                                                         quickly in the event of an
                                                                         emergency.
Schüco RWA (устройство дымо- и
теплоотвода) с верхнеподвесным окном
Schüco AWS 102
Schüco SHEVS with Schüco AWS 102
as projected top-hung window unit
                                       Характеристики и                  Features and benefits
                                       преимущества                      ● Schüco Window AWS 102 as
                                       ● Верхнеподвесное Schüco Окно       projected top-hung window unit
                                         AWS 102 сертифицировано в         tested to DIN EN 12101-2
                                         соответствии с DIN EN 12101-2   ● Can be used in Schüco standard
                                       ● Установка в стандартные           façades FW 50+ and FW 60+
                                         фасады Schüco FW 50+ и          ● Max. vent widths of
                                         FW 60+                            2700 mm x 1500 mm or
                                       ● Макс.размеры створок:             1600 mm x 2500 mm
                                         2700 мм x 1500 мм или           ● Max. vent weight 200 kg
                                         1600 мм x 2500 мм
                                                                         ● An opening angle of up to 45°
                                       ● Макс. вес створки – 200 кг        allows good aerodynamic and
                                       ● Створки окон открываются под      ventilation values to be achieved
                                         углом до 45°, что гарантирует   ● Projected top-hung window unit
                                         хорошие аэродинамические и        can be available with stepped
                                         вентиляционные характерис-        double glazing and glass
                                         тики                              retention profile or with standard
                                       ● В верхнеподвесное окно            double glazing and glazing bead
                                         устанавливается либо
                                         ступенчатый стеклопакет и
                                         крепежный профиль, либо
                                         стандартный стеклопакет и
                                         штапик
70 │ Schüco          Огнестойкие и дымозащитные системы
                     Fire and smoke protection systems




              Проверенное системное решение дымо- и теплоотвода с
              окном с жалюзи
              Certified SHEVS system solution with louvred window
              Окна с жалюзи с устройствами        In the case of louvred window units
              дымо- и теплоотвода позволяют       with Schüco smoke and heat
              открыть 80% площади окна для        extraction systems, approximately
              вентиляции и отвода вредных         80% of the total window surface is
              газов. Расположение ламелей в       available for ventilation and for
              центре створки позволяет            extraction of noxious gases. The
              использовать их даже в створках     position of the louvre units in the
              с открыванием внутрь.               centre of the vent allows them to
              Теплоизолирвоанные                  be used without hindrance by
              алюминиевые элементы                inward-opening window vents. The
              используются для изготовления       thermally insulated aluminium units
              обычных окон и ленточного           can be used for punched openings,
              остекления, а также могут           ribbon windows or in standard
              устанавливаться в стандартных       façades of up to 20 m installation
              фасадах на высоте до 20 м.          height.




              Характеристики и
              преимущества
              ● Испытанное системное реше-
                ние – теплоизолированное
                алюминиевое окно с ламеля-
                ми, соотв. DIN EN 12101-2
              ● Высота ламелей: 120 – 500 мм
              ● Звукоизоляция до 36 дБ
                достигается при монтажной
                глубине 50 мм и толщине
                стеклопакета 24 мм
              ● Коэффициент теплопередачи
                Uw = 2,3 Вт/м²K
                (DIN EN 10077-1)
              ● Поставка в виде готовых
                элементов фирмой EuroLam

              Features and benefits
              ● Thermally insulated louvred
                aluminium window unit tested as
                a system solution in accordance
                with DIN EN 12101-2
              ● Choice of 120 mm or 500 mm
                louvre heights                    Системное решение дымо- и теплоотвода
                                                  в окнах с жалюзи
              ● Noise reduction values of up to
                                                  Schüco SHEVS system solution
                36 dB can be achieved at a        with louvred window unit
                basic depth of 50 mm and with
                24 mm glass thickness
              ● Heat transition coefficient
                Uw = 2.3 W/m²K in accordance
                with DIN EN 10077-1
              ● Ready-made units supplied by
                EuroLam
Schüco стальные системы Jansen                   Schüco │ 71
                                                                          Schüco-Jansen steel systems




Schüco стальные системы Jansen
Schüco-Jansen steel systems

Благодаря особенностям                 With its material benefits, steel
материала при использовании            offers new and interesting options
стальных систем открываются            for the structural requirements for
интересные возможности                 fire protection and burglar-resistant
создания большеразмерных, а            constructions.
также огнестойких и                    These unique benefits and options
взломоустойчивых конструкций.          are optimised in the system
Эти уникальные преимущества и          components of Schüco-Jansen
возможности оптимальным                steel systems.
образом реализуются в
системных компонентах
стальных систем Schüco Jansen.




Окна и двери Janisol                   Фасадные системы VISS                   Огнестойкие системы VISS Fire
Janisol windows and doors              VISS façade systems                     VISS Fire – fire protection
                                                                               systems

Дополнительные типы                    Взломоустойчивые стальные               Зарекомендовавшая себя на
открывания окон Janisol и новые        фасады класса WK2, а также              практике стальная фасадная
скрытые дверные петли                  новый крепеж для солнцезащит-           система VISS Fire была сертифи-
позволяют создавать                    ных устройств Schüco, расширя-          цирована для использования в
нестандартные инженерные и             ют системный ассортимент                фасадах, соответствующих
дизайнерские решения.                  соответствующего требованиям            требованиям нормы DIN 4120 с
                                       СЕ стандартного фасада.                 пределом огнестойкости 90 мин.
Additional opening types for Janisol
windows and new concealed door         Burglar-resistant steel façades up      VISS Fire is a proven fire
hinges offer new structural and        to WK2 and new fixings for simple       protection façade system made
design options.                        connection of Schüco solar              from steel which has now gained
                                       shading solutions enhance the           general building approval for
                                       range of systems of the CE              façades with a fire resistance class
                                       approved standard façade.               of 90 minutes in accordance with
                                                                               DIN 4102.


стр. 72                                стр. 73                                 стр. 74
Page 72                                Page 73                                 Page 74
72 │ Schüco           Schüco стальные системы Jansen
                      Schüco-Jansen steel systems




              Окна и двери Janisol
              Janisol windows and doors

                                                          Верхнеподвесные и                       Janisol projected top hung and
                                                          параллельно-отставные окна              parallel opening windows
                                                          Janisol SK- и PAF                       The thermally broken Janisol steel
                                                          Система стальных профилей с             profile system can now be used for
                                                          терморазрывом Janisol использу-         outward opening projected top
                                                          ется для верхнеподвесных окон с         hung and parallel opening
                                                          открыванием наружу и                    windows.
                                                          параллельно-отставных окон.
                                                                                                  Features and benefits
                                                          Характеристики и                        ● Can be used in a standard
                                                          преимущества                              VISS façade
                                                          ● Установка в стандартных VISS          ● Slender face widths with
              Верхнеподвесное окно с открыванием
                                                            фасадах                                 particularly narrow vent frames
              наружу                                      ● Узкий профиль створки делает
              Outward opening projected top-hung window
                                                                                                  ● Manual or electric opening
                                                            конструкцию особенно
                                                            изящной                               ● Conforms to EnEV standards

                                                          ● Ручное или автоматическое             ● Excellent weathertightness
                                                            открывание                            ● Outstanding performance
                                                          ● Соотв.требованиям EnEv                ● Outward opening projected
                                                          ● Высокая изоляция                        top-hung window

                                                          ● Обеспечивает достаточную
                                                            вентиляцию


          Двери Janisol                                   Janisol doors
          Роликовые петли из нержаве-                     The stainless steel barrel hinges or,
          ющей стали и новые скрытые                      if preferred, the new concealed
          дверные петли сделали дизайн                    hinges are designed for their
          стальных дверей еще более                       appearance and make the steel
          выразительным.                                  and stainless steel door systems a
                                                          more elegant shape.
          Характеристики и
          преимущества                                    Features and benefits
          ● Элегантный внешний вид с                      ● Elegant door design with new
            новыми скрытыми петлями                         concealed hinges
          ● Новый фигурный штапик для                     ● New design glazing bead for
            реставрации                                     renovation projects                   Система Schüco Fingerprint
                                                                                                  Schüco Fingerprint system
          ● Самые узкие профили шпрос с                   ● Narrowest of thermally insulated
            повышенной теплоизоляцией,                      sash bar profiles with a chamber
            размер камеры – 15 мм                           size of 15 mm
          ● Встроенная система Schüco                     ● Integrated access control using
            Fingerprint                                     Schüco Fingerprint system
          ● HomeControl контролирует                      ● HomeControl for monitoring the
            положение створок и запираю-                    opening and closing of windows
            щих устройств окон и дверей                     and doors
          ● Все окна и двери из                           ● All stainless steel windows and
            нержавеющей стали могут                         doors available as burglar-
            поставляться в комплектации,                    resistant up to WK3 in
            соответствующей требованиям                     accordance with
            класса взломоустойчивости                       DIN V ENV 1627
            WK3 (DIN V ENV 1627)
Schüco стальные системы Jansen                 Schüco │ 73
                                                                                Schüco-Jansen steel systems




Фасадные системы VISS
VISS façade systems

WK2 для фасадов VISS                         WK2 for VISS façades
Дополнение к стандартной                     A system enhancement within the
стоечно-ригельной конструкции                standard range of mullion-transom
позволяет теперь изготавливать               constructions now provides the
взломоустойчивые фасады                      option of burglar-resistant façades
класса WK 2.                                 up to WK2.

Характеристики и                             Features and benefits
преимущества                                 ● Narrow sightlines with 50 mm or
● Изящные профили с видимой                    60 mm profile face widths
  шириной 50 или 60 мм                       ● May be combined with VISS
● Совместимость со                             standard façades and VISS Fire
  стандартными фасадами VISS                 ● Can be used for Linea and Delta
  и VISS Fire                                  design load-bearing profiles
● Возможность использования с                ● Security tested to WK2 in
  несущими профилями Linea и                   accordance with
  Delta                                        DIN V ENV 1627
● Взломоустойчивость класса                                                         Масштаб 1:2
  WK2 (DIN V ENV 1627)                                                              Scale 1:2




Крепления для                                Fixings for solar shading
солнцезащитных систем                        systems
Новые несущие анкеры служат                  New stainless steel anchor bolts for
для удобного и быстрого                      quick and easy attachment of
крепления систем Schüco                      Schüco SunControl systems.
SunControl.

                                                                                    Характеристики и
                                                                                    преимущества
                                                                                    ● Для стеклопакетов до 48 мм и
                                                                                      профилей накладок до 25 мм
                                                                                    ● Установка в фасадах VISS TV
                                                                                      или VISS TVS
                                                                                    ● Крепежные анкеры легко
                                                                                      прикручиваются
                                                                                    ● Перенос усилия до 75 кг на
                                                                                      одну пару болтов

                                                                                    Features and benefits
                                                                                    ● Can be used for different glass
                                                                                      thicknesses up to 48 mm and
                                                                                      cover profiles up to 25 mm
                                                                                    ● Can be used on VISS TV or
                                                                                      VISS TVS façades
                                                                                    ● Efficient fabrication as the
Крепления для соединения Schüco                                                       anchor bolts can be screwed on
SunContol с фасадом VISS                                                              easily
Fixings for attaching Schüco SunControl to
the VISS façades
                                                                                    ● Transfer of forces of up to 75 kg
                                                                                      per pair of bolts
74 │ Schüco           Schüco стальные системы Jansen
                      Schüco-Jansen steel systems




              Огнестойкие системы VISS Fire
              VISS Fire – fire protection systems

              VISS Fire E30 / E60             К огнестойкости предъявляются       Fire protection is a very sensitive
                                              высокие требования. Schüco          area. Schüco Jansen steel systems
                                              была разработана система VISS       have developed VISS Fire – a
                                              FIRE – универсальная,               modular, fully insulated façade
                                              полностью изолированная             construction for universal use.
                                              модульная фасадная                  ● Features and benefits
                                              конструкция.
                                                                                  ● The narrowest of face widths of
                                                                                    50 mm for all
                                              Характеристики и
                                              преимущества                        ● Fire resistance classes
                                              ● Минимальная видимая ширина        ● Feature load-bearing profiles as
                                                профилей – 50 мм – в конс-          T-contour, elliptical or as special
                                                трукциях любого класса              shapes (Personal Profiles)
                                                огнестойкости                     ● Very wide range of different
              VISS Fire E90                                                         cover cap designs
                                              ● Несущие профили Т-образной,
                                                эллиптической или другой          ● High degree of transparency
                                                специальной формы                   with large glass sizes up to
                                              ● Разнообразие накладок               3000 mm (F30)
                                              ● Стекло размером до 3000 мм        ● Can be combined with all
                                                (EI30) позволяет создавать          VISS standard façades
                                                максимально прозрачные            ● One system for all fire resistance
                                                конструкции                         classes: G30/G60/G90 and F30
                                              ● Совместимость с любыми              and now also F90 in accordance
                                                стандартными VISS фасадами          with DIN 4102
                                              ● Система позволяет изготавли-      ● Reliable planning thanks to
                                                вать конструкции любого             modular design
                                                класса огнестойкости – E30 /      ● Dry or wet glazing
              VISS Fire EI30
                                                E60 / E90, EI30, а также нового
                                                                                  ● Identical profiles and
                                                класса EI90, в соответствии с
                                                                                    accessories identical to those in
                                                DIN 4102
                                                                                    VISS standard façades
                                              ● Модульный принцип гаранти-
                                                                                  ● G30 curtain walls and skylights
                                                рует надежность
                                                                                    approved with tested
                                              ● Остекление с использованием         connections between vertical
                                                уплотнителей и герметиков           and sloping façades
                                              ● Профили и комплектующие           ● Janisol 2 T30 doors can be
                                                идентичны используемым в            incorporated
                                                стандартных VISS фасадах
                                                                                  ● Safety bars in accordance with
                                              ● Навесные фасады E30 и               TRAV
              VISS Fire EI90                    светопрозрачные крыши
                                                                                  ● CE approved fire protection
                                                используют сертифицирован-
                                                                                    façades
                                                ные соединения между
                                                вертикальными или наклонны-
                                                ми фасадами
                                              ● Возможность установки
                                                дверей Janisol 2 T30
                                              ● Безопасность остекления
                                                согласно TRAV
                                              ● Сертификат СЕ по огнестой-
                                                ким фасадам
                                              Масштаб 1:2
                                              Scale 1:2
Солнцезащитные системы                Schüco │ 75
                                                                        Solar shading systems




Солнцезащитные системы
Solar shading systems

Являясь важным                As one of the most important
функциональным элементом      aspects of the building envelope,
ограждающих конструкций,      solar shading systems prevent
солнцезащитные системы        rooms from overheating in summer
предотвращают перегрев        and offer the option of intelligent
помещений в летнее время, а   daylight management.
также позволяют более
эффективно использовать
естественное освещение.




                              Schüco Наружные жалюзи                 Подвижные солнцезащитные
                              BEB 80 EC                              системы Schüco SunControl
                              Schüco External Blinds                 Schüco SunControl – active
                              BEB 80 EC                              solar shading

                              Оптимальная защита от солнца и         Регуляция светового потока или
                              элегантный дизайн без нарушаю-         затенение – система с
                              щих целостность облика фасада          подвижными широкими
                              направляющих лент в центре             ламелями Schüco SunControl
                              ламелей. Все ленты проходят по         позволяет выбрать угол наклона
                              краям ламелей.                         ламелей.

                              Optimised solar shading and an         Whether for daylight management
                              elegant design without obtrusive       or shading, the Schüco SunControl
                              uide tapes through the middle of       large louvre active blade system
                              the blades, even on wider designs.     offers a high level of convenience
                              apes are mounted on the edge of        with infinitely variable blade
                              the blades.                            angling.
                              стр. 76                                стр. 78
                              Page 76                                Page 78
76 │ Schüco           Солнцезащитные системы
                      Solar shading systems




              Schüco Наружные жалюзи BEB 80 EC
              Schüco External Blinds BEB 80 EC

                                                         Новые наружные жалюзи
                                                         Schüco BEB 80 EC демонстри-
                                                         руют усовершенствованную во
                                                         многих отношениях конструкцию:
                                                         тросовые, ленточные
                                                         направляющие и кордшнуры
                                                         размещаются только у внешнего
                                                         края ламелей. Более сильный
                                                         изгиб ламелей и крепление
                                                         ламелей на направляющих не в
                                                         центральной точке позволяют
                                                         оптимизировать угол наклона.
                                                         Особенно компактны ламели в
                                                         сложенном виде в случае, если у
                                                         изогнутых ламелей плоская
                                                         нижняя планка и практически
                                                         плоские проушины. Новый
                                                         зажимной монтажный кронштейн
                                                         гарантирует быстрый монтаж
                                                         даже в случае затрудненного
                                                         доступа.

                                                         The new Schüco External Blinds
                                                         BEB 80 EC provide inspiring
                                                         system optimisation. All guide
                                                         cords, fabric tape and ladder cords
              Schüco Наружные жалюзи BEB 80 EC
                                                         are located at the extreme edges of
              The new Schüco External Blinds BEB 80 EC
                                                         the blades. The larger curvature
                                                         and off-centre fixing of the blades
                                                         to the ladder cords ensures an
                                                         optimum closing angle.
                                                         The combination of blade
                                                         curvature, a flush bottom rail
                                                         and very flat eyelets results in
                                                         extremely small stack heights.
                                                         And the new clip-on mounting
                                                         beam ensures fast installation,
                                                         even in locations with restricted
                                                         access.




                                                         Тросовые направляющие и направляющие
                                                         ламелей
                                                         Cord and blade guides
Солнцезащитные системы                 Schüco │ 77
                                                        Solar shading systems




                     Толщина сложенных ламелей
Длина полотна
Height of blinds




                            Stack height




                   Мин.толщина сложенных ламелей     Масштаб 1:2
                   Minimal stack height              Scale 1:2




                   Характеристики и                  Features and benefits
                   преимущества                      ● Cord guide, fabric tapes and
                   ● Тросовые, ленточные               ladder cords all together at the
                     направляющие и кордшнуры          edge of the blades: elegant
                     размещаются у внешнего края       appearance plus improved solar
                     ламелей. Элегантный дизайн в      shading and anti-glare protection
                     сочетании с улучшенной          ● The larger curvature of the
                     антибликовой и                    blades and off-centre fixing of
                     солнцезащитой                     the blades to the ladder cords
                   ● Более сильный изгиб ламелей       ensures an optimum closing
                     и крепление ламелей на            angle
                     направляющих не в               ● Minimal stack height both with
                     центральной точке позволяют       and without eyelets
                     оптимизировать угол наклона
                                                     ● Clip-on mounting beam for fast
                   ● Мин.толщина сложенных             installation
                     ламелей как при наличии, так
                     и при отсутствии проушин        ● Flush bottom rail

                   ● Монтажный кронштейн на          ● Integral springs for controlled
                     зажимах ускоряет установку        rigging

                   ● Плоская нижняя планка
                   ● Встроенная пружинная пара
                     позволяет регулировать
                     натяжение троса
78 │ Schüco          Солнцезащитные системы
                     Solar shading systems




              Подвижные солнцезащитные системы Schüco SunControl
              Schüco SunControl – active solar shading

              Новая концепция статических       The new structural mullion design
              стоек для подвижных солнцеза-     for Schüco SunControl active solar
              щитных устройств Schüco           shading features three new single-
              SunControl включает в себя три    component mullion profiles. The
              новых профиля стоек. При этом     structural mullions are used as
              статические стойки используются   load-bearing constructions with
              в качестве несущей конструкции    linear drives.
              с линейным приводным механиз-
              мом.                              Features and benefits
                                                ● These three new structural
              Характеристики и                    mullions mean that many
              преимущества                        different applications can be
              ● Три новые статические стойки      implemented, even with the               Цельная статическая стойка с
                позволяют использовать стой-      smallest of mullion profiles and         улучшенными статическими
                ки мин.размера при незначи-       minimum use of materials                 характеристиками
                тельном расходе материала       ● Reduced weight structural
                                                                                           One-piece structural mullion with
                                                                                           improved structural values
              ● Облегченные статические           mullions with improved structural
                стойки с улучшенными стати-       values
                ческими характеристиками        ● Insert profiles are no longer
              ● Отпадает необходимость            required
                использования вставных          ● One-piece structural mullions
                профилей                          make fabrication of the load-
              ● Использование цельных             bearing structure significantly
                статических стоек значительно     easier
                упрощает изготовление
                несущей конструкции

                                                                      Цельная статическая стойка
                                                                      One-piece structural mullion




              Масштаб 1:5
              Scale 1:5
О компании             Schüco │ 79
                                                                                                 The company




Schüco – эксперт по оболочке здания
Schüco – The building envelope specialist




    Системы из алюминия Aluminium systems   Системы из стали Steel systems             Системы из ПВХ PVC-U systems




    Готовые элементы Standard units         Солнечные батареи Solar products           Schüco Design Schüco Design




Schüco International KG – это ведущая компания на             Schüco International KG is the European leader in
европейском рынке по продаже систем из                        system-based construction with aluminium, steel,
алюминия, стали, ПВХ, а также солнечных батарей.              PVC-U and solar products. As leading innovator in this
Являясь лидером в разработке передовых                        field, Schüco supplies the components for the whole
технологий, Schüсo поставляет компоненты для                  building envelope, including special software solutions
всей оболочки здания, а также специализированное              for planning, construction, calculation and fabrication.
программное обеспечение для проектирования,                   A truly global company, Schüco co-operates with
конструирования, расчетов и производства. Как                 architects, investors and fabricators in almost every
предприятие, работающее на глобальном рынке,                  country in the world. With its well-honed model of
Schüco сотрудничает с архитекторами,                          system partnership, Schüco stands out on the world
инвесторами и производителями практически во                  stage, not only on account of its technological
всех странах мира. Благодаря продуманной схеме                expertise, but as a company dedicated to the success
системного партнерства фирма Schüco                           of its partners.
зарекомендовала себя во всем мире не только как
эксперт в области передовых технологий, но и как
предприятие, нацеленное на успех всех своих
партнеров.
80 │ Schüco      О компании
                 The company




              Системы из                       Системы из стали                     Системы из ПВХ
              алюминия                         Steel systems                        PVC-U systems
              Aluminium systems




          Многофункциональной оболочке         Совместно с Jansen AG Schüco         Schüco предлагает
          здания принадлежит будущее:          предлагает на рынках некоторых       высококачественные системы
          практичные профили из                стран решения для фасадов,           профилей из ПВХ, отличающиеся
          алюминия являются надежной,          ворот и дверей для                   богатым ассортиментом и
          обеспечивающей свободу               высококачественных стальных          разнообразным дизайном.
          творческих решений основой для       труб и стальных профилей.            Надежность продукции и ее
          разработки комплексных               Таким образом Schüco открывает       привлекательный внешний вид,
          решений для фасадов,                 новые направления в системных        многообразие цветовой палитры
          светопрозрачных крыш, окон,          технологиях: широкие                 и удобство обслуживания
          дверей, систем солнцезащиты,         архитектурные возможности,           являются лишь некоторыми из
          зимних садов, балконов,              технологические решения,             многих преимуществ систем из
          ограждений, а также защитных         удовлетворяющие практически          ПВХ фирмы Schüco.
          конструкций и конструкций            любым требованиям и
          повышенной безопасности.             эффективные методы обработки         Schüco offers you high quality
          Передовые технологии                 идеально дополняют друг друга.       PVC-U system technology which is
          управления окнами и фасадами                                              distinguished by its broad range of
          Schüco позволяют объединить          In partnership with Jansen AG,       products and comprehensive
          отдельные системы здания в           Schüco offers solutions for          design options. Product reliability,
          единое целое.                        façade and door technology from      attractive designs, a range of
                                               high quality steel tubes and steel   colours and the comfort of easy
          The future belongs to the            profile systems both in Germany,     operation are only some of the
          multi-functional building            and in other selected countries.     advantages of Schüco PVC-U
          envelope: aluminium profiles         In this way, Schüco is opening a     systems.
          are the secure and creative          new dimension in system
          basis for comprehensive              expertise: architectural freedom,
          solutions for façades, skylights,    technological solutions for almost
          windows, doors, solar shading,       all requirements and efficient
          conservatories, balconies,           fabrication are ideally
          balustrades, and protection and      complemented.
          security constructions. Pioneering
          window and building management
          technology from Schüco brings
          individual building systems
          together into a single unit.
О компании             Schüco │ 81
                                                                                           The company




Готовые элементы                         Солнечные                            Schüco Design
Standard units                           батареи                              Schüco Design




Готовые элементы Schüco из               Многофункциональная систем-          Подразделение Schüco Design –
ПВХ и алюминия могут исполь-             ная технология фирмы Schüco          специалист по системным
зоваться в любых новостройках            по преобразованию солнечной          технологиям для алюминия,
или при реконструкции зданий.            энергии в тепловую и электро-        предлагает различные возмож-
Schüco предлагает идеальные              энергию предусматривает              ности оформления, начиная с
решения для индивидуального              отличную совместимость всех          разработки и заканчивая
строительства, включая зимние            компонентов. Schüco – ведущий        производством, включая обра-
сады, окна, двери, или солнеч-           поставщик фотогальванических         ботку и отделку поверхностей.
ные батареи – системные                  и водонагревающих устройств          Для машиностроения, промыш-
технологии обеспечивают                  на солнечных батареях гаранти-       ленной и рекламной сферы, а
полную совместимость элемен-             рует единую схему сборки, что        также мебельной промышлен-
тов.                                     делает эти технологии более          ности Schüco Design разработа-
                                         энергосберегающими.                  ло комплексные решения,
Ready-made units made by Schüco                                               впечатляющие своей функцио-
from PVC-U and aluminium are             Within the multifunctionality of     нальностью, экономичностью и
available for all your new build or      Schüco’s solar energy technology,    гибкостью.
renovation needs. Schüco has the         all the components for solar
ideal solution for individual building   heating and electricity production   As a specialist in aluminium
ideas, be it conservatories,             are perfectly integrated. As the     system technology, Schüco
windows, doors or solar products –       leading supplier of photovoltaic     Design offers a broad spectrum of
system technology means all the          and solar heating units, Schüco      design options, from development
units are fully compatible.              guarantees a uniform system of       to production, including surface
                                         assembly and thereby also            finishing. For engineering,
                                         particularly efficient technology.   industrial technology, advertising
                                                                              and the furniture industry,
                                                                              Schüco Design manufactures
                                                                              comprehensive product solutions
                                                                              which are functional, economical
                                                                              and flexible.
82 │ Schüco       О компании
                  The company




              Компетентность
              Expertise




              Новые контакты – надежное                    New contacts – tried and tested
              консультирование                             advice
          ● Мы консультируем и оказываем поддержку:        ● We provide consultancy and support for:
               ● заказчикам                                  ● Clients
               ● архитекторам                                ● Architects
               ● административным органам                    ● Local authorities
               ● генеральным подрядчикам                     ● General contractors
               ● предприятиям жилищного строительства        ● Housing associations
          ● Мы находим решения для новых объектов          ● We find solutions for new projects
          ● Мы помогаем составить перечень работ и услуг   ● We help to create the bill of quantities
          ● Мы консультируем при составлении               ● We offer advice on translating your bill of
            предложения на основе перечня работ и услуг      quantities into a tender



              Большие планы – несложное                    Big ideas – straightforward
              проектирование                               planning
          ● Мы оказываем поддержку при                     ● We offer support with:
               ● проведении тендеров                         ● Specifications
               ● выполнении примыканий к зданиям             ● Attachments to building structure
               ● учете строительно-физических требований     ● Consideration of physical requirements
               ● выборе желаемого оформления зданий          ● Design requirements
               ● выполнении предв.статических расчетов       ● Preliminary structural analysis
               ● выбор системы                               ● Choice of system
               ● разработке конструкционных предложений      ● Design proposals
О компании                    Schüco │ 83
                                                                                                            The company




Контакты
Contact




Проектировщики и региональные                                    Architectural Projects Management and
менеджеры по продажам: услуги,                                   Area Sales:
предоставляемые Schüco                                           Services provided by Schüco
● Мы оказываем Вам услуги бесплатно                              ● Our service is provided free of charge
● Мы помогаем претворить Ваши идеи в жизнь                       ● We help to bring your ideas to life
● Вы экономите время и деньги                                    ● You save time and money
● Ваше производство становится эффективнее                       ● You can work more profitably
● Вы добиваетесь большего успеха                                 ● You will become more successful




Schüco International KG                                          Schüco International KG
Karolinenstraße 1-15 •                                           Karolinenstraße 1-15 •
D-33609 Bielefeld                                                D-33609 Bielefeld
Телефон +49 521 783-0                                            Telephone +49 521 783-0
Телефaкс +49 521 783-9260                                        Fax No +49 521 783-9260
www.schueco.com                                                  www.schueco.com




Выпуск № 281 764 / Издание: янвapь 2007                          Manual No.: 281 764 / Edition: January 2007

Перепечатка, в том числе частичная, возможна только с нашего     Reproduction, even in part, is not permitted, except with our approval.
согласия. Мы оставляем за собой право вносить изменения в        We reserve the right to introduce modifications in the interest of
интересах технического прогресса. Все наши системы и             technical progress.
техническая продукция разрабатывались с учетом немецких и        All our systems and technical products have been developed with due
европейских норм, директив и рекомендаций. Поэтому в отдельных   regard to the rules and conditions of DIN (Deutsches Institut für
случаях могут возникать отклонения от национальных норм,         Normung e.V.). Consequently, deviations from other standards
директив и рекомендаций. Нашим заказчикам следует сравнивать     may sometimes arise. Customers should therefore make their own
наши рекомендации с требованиями действующих в их стране         comparison with appropriate standards in their own country.
норм. Действуют наши актуальные Общие условия продажи и          Our general sales and delivery conditions apply. Ordering instructions
поставки – документация по оформлению заказа не используется     are not intended for use as fabrication instructions.
как производственная документация.
Новая маркировка продукции
New product designations

                                              В Инновациях 2007 приведена                         With its Innovations 2007, Schüco
                                              новая маркировка продукции                          is introducing new product
                                              Schüco.                                             designations.

                                              Главное из нововведений -                           The foundations are abbreviations
                                              обозначение группы продуктов                        consisting of three letters which
                                              сокращением из трех букв. За                        describe the particular product
                                              ними, как и раньше, следует                         group. As before, they are followed
                                              техническое цифровое                                by a technical figure (e.g. basic
                                              обозначение (напр., монтажная                       depth or face width), and by other
                                              глубина или видимая ширина), а                      specifications relating to shape or
                                              также описание особенностей                         function.
                                              продукта - его конфигурации или
Schüco Окно AWS 75 BS.HI                      функций.                                            Example:
Schüco Window AWS 75 BS.HI
                                                                                                  Schüco Window AWS 75 BS.HI
                                              Пример:                                             AWS = Aluminium Window System
                                              Schüco Окно AWS 75 BS.HI                            BS = Block System (block window)
                                              AWS = Aluminium Window System                       HI = High insulation (high thermal
                                              (алюминиевая оконная система)                       insulation)
                                              BS = Block System (блочное окно)
                                              HI = High insulation (повышенная                    The list below gives an overview of
                                              теплоизоляция)                                      the first new names, as they are
                                                                                                  introduced in the innovations
                                              В приведенном ниже списке                           featured in this Architect
                                              названы первые новые                                Information brochure.
                                              обозначения систем, впервые
                                              описанных в данном выпуске
                                              информации для архитекторов.




Группа          Наименование                Расшифровка
Product group   Designations                Explanation
AWS             Aluminium Window System Оконная система из алюминия / Aluminium window system

ASS             Aluminium Sliding System    Раздвижная система из алюминия / Aluminium sliding system

SFC             Stick Frame Construction    Стоечно-ригельный фасад со встроенными рамами / Mullion-transom façade with insert frame

SMC             Stick Modular Construction Модульный стоечно-ригельный фасад / Mullion-transom façade using modular construction methods

COC             Conservatory Construction Система для модульных зимних садов/ Conservatory system using modular construction methods

BEB             Basic External Blinds       Наружные жалюзи с плоскими ламелями / Flat blade external blinds
Спец. обозн.
Specification
                                            Конструкция с максимальной теплоизоляцией / Construction with the highest level of thermal
.SI             Super Insulation
                                            insulation
.HI             High Insulation             Конструкция с повышенной теплоизоляцией / Construction with high thermal insulation

BS              Block System                Блочные профили / Block-shaped profiles

ST              Steel contour               Узкие профили, имитирующие стальные / Profiles with a narrow steel contour

RL              Residential Line            Профили со скошенными с внешней стороны контурами / Profiles with bevelled external contour

SL              SoftLine                    Профили со скругленными с внешней стороны контурами / Profiles with rounded external contour

WF              Window Façade               Профили для фасадов с окнами / Profiles for use as window façaces

SG              Structural Glazing          Конструкции со структурным остеклением / Construction with the appearance of continuous glazing

EC              Electronic Cable            Электропривод с направляющей кабеля / Electrically driven using wire cable guide
Запрос по объектам
Projektorder


Отправить бланк запроса по факсу Schüco Факс:    +49 521 783-9260
Fax project order to Schüco             Fax No.: +49 521 783-9260


    Я хотел бы получить информацию, касающуюся следующих тем. Прошу выслать мне сведения о:
    I would like to receive information on the following topics. Please send me more information:




    Мне необходима техническая консультация по следующему объекту:
    I would like a technical consultation on the following project:




    Прошу связаться со мной.
    Please get in touch with me.




Номер клиента      Customer number



Фирма              Company



Фамилия            Name



Улица              Address



Индекс /город      Town / Postcode



Телефон / Фaкс.    Telephone / Fax No.



E-mail             E-Mail




Schüco International KG           Schüco International KG
Karolinenstraße 1-15 •            Karolinenstraße 1-15 •
D-33609 Bielefeld                 D-33609 Bielefeld
Телефон +49 521 783-0             Telephone +49 521 783-0
Телефaкс +49 521 783-9260         Fax No. +49 521 783-9260
www.schueco.com                   www.schueco.com

инновации 2007

  • 1.
    Ihr individueller SchücoKatalog Sehr geehrte Kundin, sehr geehrter Kunde, wir freuen uns, Ihnen heute Ihren individuellen Katalog mit Stand 03.2011 überreichen zu dürfen. Dieser Katalog beinhaltet folgende Kompendien: 2007 2007 / 2007 / 2007 / C 2007 / 2007 / 2007 / 2007 / 2007 / Jansen 2007 / 2007 / Schüco 2007 / Die Preise entnehmen Sie bitte der aktuellen Gesamtpreisliste oder erfragen diese bei Ihrem zuständigen Außendienst-Mitarbeiter. Wir danken Ihnen für Ihr Vertrauen in unser Unternehmen sowie in unsere Produkte und freuen uns auf eine erfolgreiche Zusammenarbeit. Mit freundlichen Grüßen Ihre Schüco International KG
  • 3.
    Приветствие Schüco  │  Welcome Schüco – специалист в области окон и солнечных батарей Schüco - the address for windows and solar products Энергия – важнейшая тема Energy is one of the “mega topics” будущего и мы чувствуем это уже of the future – the consequences of сегодня. Поэтому мы приняли which can already be felt. This is решение внедрять передовые why Schüco offers innovative ideas идеи в отношении производства concerning the “Energy One-Two”, и экономии энергии, например, i.e. the saving and generation of «двойного энергетического energy. Highly insulated windows паспорта», т.е., окон с высокой help reduce consumption of степенью теплоизоляции, expensive oil. And you can use the позволяющих экономить дорогую roof or the façade of your home as нефть. Кровля и фасад также a power station to generate solar могут участвовать в производс- energy. The combination of the two тве нужной для дома энергии, offers the one-off opportunity to если на них установить солнеч- both save and generate energy. ные батареи. Такое сочетание “The address for windows and технологий экономии и генериро- solar” is therefore much more than вания энергии предоставляет the title of our marketing campaign. уникальные возможности. It represents our expectation; it is «Специалист в области окон и our vision for the future. солнечных батарей» – это больше, чем название нашей Architects have always been маркетинговой кампании. Это – visionaries. They are the people наша цель, наше видение who amaze and inspire us with their будущего. innovative ideas. They are the Архитекторы всегда опережали people who create the blueprints for свое время. Именно они вызыва- exciting spaces and constructions. ли восхищение и воодушевление своими новаторскими идеями. Visions must however also be Именно они создавали удиви- feasible. The following pages тельные пространства и строе- present creative solutions to the ния на основе первых эскизов. four biggest topics of our time: Видения будущего живы, только energy, security, design and если они реализуемы. В этой automation. брошюре мы представляем Вам творческие решения самых Take advantage of the multitude of волнующих проблем нашего options that the World of Schüco времени: энергии, безопасности, offers – both now and in the future. дизайна, автоматизации. Вос- пользуйтесь разнообразными возможностями «Мира Schüco» Best wishes, сейчас и в будущем. Искренне Ваш, Дирк У. Хиндрикс Президент и генеральный директор Schüco International KG President and CEO, Schüco International KG
  • 4.
  • 5.
      │  Schüco Основные новинки Top innovations Основные новинки Top innovations Выбирая Schüco, Вы делаете Schüco products represent system- ставку на опыт в области based expertise with numerous системного подхода и new products offering considerable многочисленные новинки, added value with regard to energy, обеспечивая выигрыш в энергии, security, automation and design. безопасности, дизайне, These innovative products impress автоматизации. При этом through their system compatibility инновации привлекают высокой and maximum design freedom. системной совместимостью и максимальной свободой выбора архитектурных решений. Schüco Окно AWS 75.SI Фурнитура Schüco TipTronic Schüco Фасад SFC 85 Schüco Window AWS 75.SI  Schüco TipTronic fitting Schüco Façade SFC 85 cтр. 0 cтр.  cтр. 58 Page 0 Page  Page 58 Schüco Зимний сад COC 50 Окна Janisol SK Schüco Наружные жалюзи  Schüco Conservatory COC 50 Janisol projected top hung window BEB 80 EC Schüco External Blinds BEB 80 EC cтр. 6 cтр. 7 cтр. 76 Page 6 Page 7 Page 76
  • 6.
    Содержание Schüco  │  5 Content Содержание Content 6 Темы будущего 69 Сертифицированная конструк- Topics of the future ция дымо- и теплоотвода с верхнеподвесным окном Certified SHEVS system solution with projected top-hung 16 Оконные, дверные и window раздвижные системы 70 Проверенное системное Window, door and решение дымо- и теплоотвода sliding systems с окном с жалюзи Certified SHEVS system 19 Оконные системы solution with louvred window Window systems 39 Фурнитура Fittings 71 Schüco Стальные 45 Дверные системы системы Jansen Door systems Schüco-Jansen steel systems 51 Раздвижные системы Sliding systems 72 Окна и двери Janisol Janisol windows and doors 73 Фасадные системы VISS 56 Фасады и зимние VISS façade systems сады 74 Огнестойкие системы Façades and VISS Fire conservatory systems VISS Fire – fire protection systems 58 Schüco Фасад SFC 85 Schüco Façade SFC 85 60 Schüco Фасад FW 60+SG FW 60 75 Солнцезащитные Schüco Façade FW 60+SG системы 62 Schüco Фасад S�C 50 Solar shading systems Schüco Façade S�C 50 76 Schüco �аружные жалюзи 64 Schüco Зимний сад COC 50 BEB 80 EC Schüco Conservatory COC 50 Schüco External Blinds BEB 80 EC 78 Подвижные солнцезащитные системы Schüco SunControl 67 Огнестойкие и дымо- Schüco SunControl – защитные системы active solar shading Fire and smoke protection systems 79 О компании 68 �ормы и инструкции, регули- The company рующие применение устрой- ств дымо- и теплоотвода Standards and guidelines for smoke and heat ventilation systems
  • 7.
    6  │  Schüco Темы будущего Topics of the future Четыре основные темы в архитектуре будущего: Energy, Security, Automation, Design. Одним словом: Schüco. The four key issues for the future: Energy, Security, Automation, Design. In a word: Schüco.
  • 8.
    Темы будущего Schüco  │  7 Topics of the future В будущем, при разработке In future, our architectural plans архитектурных проектов, and designs, the construction phase строительстве и эксплуатации зданий and subsequent use of real estate решающее значение будут иметь will be determined by additional new совершенно иные параметры. Кроме parameters. Energy, security, функционального назначения здания, automation and design will become его оснащения и архитектурного key factors, just as building function, решения, значительное внимание room book and urban planning are now. уделяется таким факторам, как These parameters are the result of расход энергии, безопасность, social developments and the demands наличие автоматических систем of future generations on our built и дизайн. Это стало возможным в environment. Our challenge is to meet результате развития общества и the needs of the next учета требований будущих поколений generation. к построенному нами миру. �аша задача – выполнить эти требования.
  • 9.
    8  │  Schüco Темы будущего Topics of the future Energy При проектировании зданий A building’s function is the most наибольшее внимание important consideration during уделяется его функциональному the planning phase. In the past, назначению. Архитектурные и architectural and civic градостроительные аспекты considerations were equally продолжают учитываться и important – indeed they still are сейчас, однако экономическая today. Financial necessity was целесообразность ранее, как often postulated, only to be ignored правило, не учитывалась, а during the construction process вопросы экологии и энергетики itself, whilst ecological and вообще играли второстепенную energy-conscious aspects were роль. only of secondary importance. Мы даже не можем представить However, this will change much себе, насколько кардинально more fundamentally and more изменится ситуация в radically than many people realise. будущем. Список приоритетов In years to come, the priority list will будет выглядеть иначе. �а look rather different. Function will первом месте будет стоять be paramount, followed by energy- функциональность, затем related requirements and economic рациональное энергопотребление parameters that take into account с учетом долгосрочной стоимости the operation costs of a building in эксплуатации здания, а также the long term, under which aspect экологии. И только в самом конце environmental considerations are будут стоять архитектурные и also subsumed. Only once due градостроительные требования. consideration has been given to these factors will attention turn to Ископаемые источники энергии architectural and urban attributes. скоро нельзя будет использовать в тех же объемах. Под This is a result of the increasing давлением социума изменится scarcity of fossil fuels. The resulting архитектура. Здания должны socio-political pressure will change эксплуатироваться даже тогда, architecture. In the future, the когда иссякнут существующие lifecycle of buildings must be запасы. sustainable well into the time when fossil fuels can no longer be used Кроме того, в ЕС вводится to the extent that they are today. энергетический паспорт, учитывающий класс There is also the EU-wide эффективности расходования introduction of the energy passport энергии и энергопотребление. with its key criteria of energy В дальнейшем в нем будет efficiency class and energy определяться энергетическая requirement. In future, the energy ценность любой недвижимости. passport will record the energy value of any type of real estate. Архитекторы, в сотрудничестве с другими специалистами, смогут For architects, this means working разработать качественные with other designers in creative энергосберегающие здания. planning processes to create architecture of abiding quality thanks to a trend-setting energy concept.
  • 10.
    Темы будущего Schüco  │  Topics of the future Должна ли энергия играть доминирующую роль в архитектуре? И как бы при этом выглядело окружающее нас пространство? Should energy use play a dominant role in architecture? What would the built environment look like if it did? Schüco делает энергию With Schüco, energy remains невидимой. Все элементы invisible. All Schüco façade units фасадов Schüco обеспечивают offer optimised thermal insulation оптимальную и при этом which remains hidden from view. совершенно незаметную As with the innovative Schüco теплоизоляцию. Таково же AWS generation of windows новое поколение окон Schüco (Uf =1.4 with a face width of Окно AWS (Uf = 1,4 при 117 mm). However, architects still видимой ширине 117 мм). enjoy the same level of design Фантазия архитектора при freedom. проектировании фасада по- прежнему практически ничем не ограничена.
  • 11.
    10  │  Schüco Темы будущего Topics of the future Security В наше время тема безопас- In the current climate, security ности приобретает особое is a topic of special importance. значение. Согласно опросам, According to a survey in Germany проведенным в Германии conducted by the Allensbach Алленсбахским институтом Opinion Poll, people are most исследования общественного concerned about employment мнения, больше всего люди (58.8 %) followed by the future for боятся безработицы (58,8 %). young people (52 %). Third in the А 52 % обеспокоены перспекти- list of concerns came fear of crime вами для молодого поколения. and physical injury (48 %). Страх перед преступлениями и телесными повреждениями был This latter concern is one that упомянут у 48 % опрошенных, и architects must take seriously. находится на третьем месте в In addition to their basic job of списке страхов. protection against the elements, heat and cold, buildings also Архитекторы должны всерьез provide a general protective воспринимать эти опасения. function that goes well beyond �аряду с традиционной функ- the security of individual building цией укрытия от холода, жары components. Buildings must и непогоды, дома выполняют therefore provide their occupants и общую защитную функцию, with a feeling of security and которая выходит за пределы safety against threats from взломоустойчивости отдельных without, whether real or imagined. блоков. Дом должен давать оби- тателями чувство безопасности A conflict is developing in и защищать их от любых угроз, architecture between the need исходящих извне. При этом речь for security on the one hand, and идет не только о реальных, но и the need for transparency on the о воображаемых опасностях. other. The distinction between inside and outside is Перед архитектором при этом becoming blurred as a result, встают противоречивые задачи: indeed in some cases it is even обеспечить при значительной disappearing altogether. Glass доле прозрачных конструкций façades allow the observer to высокий уровень безопасности. watch the production of cars. Граница между внешним и внут- Office workers perch at their ренним размывается, а где-то desks with their backs to the – исчезает полностью. Фасады outside world, separated only by из стекла позволяют увидеть a glass wall from the steep drop процесс производства авто- behind them. Airport terminals мобилей. Офисные служащие can be seen through with a single сидят на вращающихся стульях glance and shopping demands на краю пропасти, свободному complete freedom from building падению в которую мешает obstructions. In all these только стеклянная стена за scenarios, security is invisible. спиной. Терминалы аэропортов просматриваются насквозь, а поход за покупками требует пол- ного отсутствия видимых пре- пятствий. Во всех этих случаях защита должна быть невидимой.
  • 12.
    Темы будущего Schüco  │  11 Topics of the future Безопасность: турникеты у входа, стены вокруг рабочих мест и фабричных цехов и забор? Security: Entrances with turnstiles, walls around offices and factory halls, protection through fences? Schüco обеспечивает Schüco provides for direct безопасность непосредственно security in buildings. Biometric в самом здании. access control with remote Радиоуправляемые системы triggering, “invisible”, integrated ограничения доступа по SHEVS, aluminium fire protection биометрическим параметрам, constructions and foolproof «невидимая» встроенная emergency door security are just система дымоотвода, a few examples.Security is огнестойкие конструкции из essential. It must be perceptible алюминия, блокировка дверей and tangible, yet be as invisible as аварийного выхода с защитой от possible. For architects and users. неправильного использования – вот только несколько примеров. Безопасность необходима, она должна быть ощутимой и при этом настолько незаметной, насколько это возможно. Для архитекторов и пользователей.
  • 13.
    1  │  Schüco Темы будущего Topics of the future Automation Ранее автоматическими систе- Building automation was мами занимались проектиров- previously the preserve of щики и инженеры, которые про- designers and engineers who ектировали и осуществляли planned and managed air управление кондиционерами, conditioning, heating, and water отопительными системами и treatment systems. Nowadays водоснабжением. Сейчас авто- however, building automation матизация выходит за рамки goes far beyond plate ducts and коробов и труб. Современные pipes. The possibilities presented цифровые технологии управле- by modern digital control ния, в которых количество пере- technology, by which the number дающих данные цифровых of data points and processing устройств и скорость обработки speed no longer matters, allows больше не имеют значения, additional functions to be позволяют автоматизировать и automated. другие функции. This is now a key field for Так автоматизация входит в круг architects. Externally mounted интересов архитектора. solar shading blinds, internal Внешняя солнцезащита, внут- anti-glare shading, light control ренние устройства антиблико- and air conditioning allow вой защиты, светонаправляю- individual adjustments. Occupants щие жалюзи и настройка конди- and users enjoy far more options ционеров позволяют обеспечить to adjust the room climate and комфортные условия для каждо- lighting to suit their needs. The го. У обитателей и посетителей technology must, of course, здания намного больше возмож- work reliably and be concealed ностей по своему желанию регу- to the greatest possible extent. лировать микроклимат и осве- All functions must be self- щенность. При этом устройства explanatory, assuming that they должны безупречно функциони- are operated correctly. ровать и по возможности быть незаметными. Все функции When technology disappears, должны быть интуитивно понят- becomes invisible and intangible, ны, а ошибки – исключены. problems at the interface level can arise. This explains the still Когда устройства невидимы и surprisingly low acceptance level неощутимы, возникают пробле- that today’s technology – мы на уровне интерфейса. Этим summarised under the banner объясняется по-прежнему невы- “intelligent home” – enjoys in the сокая популярность в частных residential construction sector. домах систем «умный дом». A level of building automation Степень автоматизации, которая that in the public world of work, не вызывает у нас возражений culture and leisure is accepted на промышленных объектах, в without reservation, appears to be офисных зданиях, культурно- unwanted in the private sphere. развлекательных комплексах, Given that comparable electronic оказывается неприемлемой в systems in private cars are собственном доме. considered a matter of course, Парадоксально, но факт: те же this would seem paradoxical. электронные системы в личном автомобиле воспринимаются как нечто само собой разумеющееся.
  • 14.
    Темы будущего Schüco  │  1 Topics of the future Мобильный телефон, автомобиль и бытовая радиоэлектронная аппаратура демонстрируют нам современный уровень развития технологий. Зачастую – для нашей пользы, иногда – только для развлечения. В строительстве технологический прогресс не так заметен, но разве стоит совсем отказываться от него? �obile phones, cars and entertainment electronics are always at the cutting edge of technology. Often for our use and benefit, sometimes simply as toys. In construction, the pace of change is slower, but do we want it to stand still? Кроме удобства, современные In addition to aspects of comfort, автоматизированные системы modern automated building для зданий, например, фурни- components such as TipTronic тура TipTronic, предоставляют fittings offer enhanced window дополнительные функции, а functions, e.g. time and sensor также допускают управление control. They are also secure устройствами по времени и с and enable easy access living. помощью датчиков. Они обеспе- Advanced and reliable. чивают безопасность и позволя- Automation is more than comfort. ют убрать барьеры. Тщательно разработанная, надежная тех- нология. Автоматизация – это больше, чем просто комфорт.
  • 15.
    1  │  Schüco Темы будущего Topics of the future Design Дизайн определяет внешний вид Design endows objects with a и функциональность. �ачиная с certain form and function, from автомобиля, скрепки, одежды и cars to paper clips, clothing to заканчивая стулом. Дизайн – это chairs. Yet there is much more больше, чем оформление и to design than form and styling: стиль. Удачный дизайн – это good design is a complex process комплексный процесс, в ходе combining various and often которого решаются различные conflicting requirements so that и часто противоречащие друг objects function in the intended другу задачи, цель которых – way. Design is good only if добиться необходимой нам aesthetics, ergonomics, функциональности. Дизайн longevity, function, ecology and требуется там, где эстетика, comfort complement each other in эргономика, долговечность, a harmonious way. функциональность, экология и удобство находятся в гармонии Design is the difference between и дополняют друг друга. architecture and rudimentary construction. The particular Различие между архитектурой design quality of architecture и массовой застройкой состоит raises it up from the merely useful в форме. Художественная or essential. “Architecture is the ценность архитектурных harmonisation of all parts such объектов поднимает их над that nothing can be added, taken миром утилитарности и away or changed without необходимости. «Архитектура – destroying the whole.” это гармония и соразмерность (Leon Battista Alberti, 1452) всех частей, которая достигается тогда, когда ни убавить, ни прибавить ничего нельзя, не разрушив целого». (Леон Батиста Альберти, 1452 г.)
  • 16.
    Темы будущего Schüco  │  15 Topics of the future „Less is more“. За выдающимся дизайном скрывается нечто большее? “Less is more”. There is more to excellent design than this? Оставить только главное – не Reduction to the essentials means значит получить меньше. Это more, not less. �ore focus on означает – получить больше. function and perfection of design. Больше внимания уделяется �ore focus on technology. And функциональности и совершенс- more communication with тву формы, а также технологии. architects and planners. This is Более тесное сотрудничество the philosophy underpinning между архитектором и проекти- Schüco innovations such as ровщиком. Так возникают новин- the AvanTec fittings. ки Schüco, например, фурнитура AvanTec..
  • 17.
    16 │ Schüco Оконные, дверные и раздвижные системы Window, door and sliding systems Оконные, дверные и раздвижные системы Window, door and sliding systems Новые системы Schüco для Schüco’s innovative window, изготовления окон, дверей и door and sliding systems represent раздвижных конструкций valuable solutions that set new предлагают ценные решения, standards for modern, trend-setting устанавливающие новые architecture with regard to thermal стандарты для современной insulation, security, comfort and архитектуры в вопросах энергии, design. надежности, автоматизации и дизайна. Оконные системы Фурнитура Window systems Fittings Окна нового поколения Schüco Системы скрытой фурнитуры AWS привлекают высокой AvanTec и Schüco TipTronic теплоизоляцией и широким символизируют высочайшее ассортиментом комплектующих, качество и функциональность. что позволяет создавать Полностью совместимая с оригинальные архитектурные системами Schüco линия ручек объекты. «Дизайн» обеспечивает единство оформления. The new Schüco AWS window generation impresses with its The Schüco AvanTec and excellent thermal insulation Schüco TipTronic concealed fittings properties and a comprehensive systems represent the very best in system programme that allows the quality and functionality. And the realisation of individual design universally compatible Schüco solutions. handle design range allows for a consistent style. стр. 19 стр. 39 Page 19 Page 39
  • 18.
    Оконные, дверные ираздвижные системы Schüco │ 17 Window, door and sliding systems Дверные системы Раздвижные системы Door systems Sliding systems Объединенные в сеть устройства Система Schüco e-slide нажатием контроля доступа с управлением кнопки открывает и закрывает в режиме онлайн, предохраните- раздвижные двери. Новинка: ли для дверей аварийного автоматическая раздвижная выхода и дверные блоки с дверь для Schüco ASS 65 плоским порогом, открывающие- automatic – комплексное ся на всю ширину проема – решение для входных групп актуальные новинки Schüco общественных зданий. Networked, online access control, Large sliding door systems can emergency door locking and easy now be opened comfortably at the access door systems with clear touch of a button with Schüco opening dimensions – the latest e-slide. Schüco innovations optimise Also new: Schüco ASS 65 auto- building security and set new tones matic sliding door– the complete in design. solution for busy entrance areas. стр. 45 стр. 51 Page 45 Page 51
  • 19.
    18 │ Schüco Оконные, дверные и раздвижные системы Window, door and sliding systems
  • 20.
    Оконные, дверные ираздвижные системы Schüco │ 19 Window, door and sliding systems Schüco Окно AWS – надежный вклад в оболочку здания Schüco AWS windows – lasting investment in the building envelope Правительства европейских (Schüco AWS 75.SI, видимая The innovative, highly thermally стран взяли на себя обязательс- ширина 117 мм) значительно сни- insulated Schüco AWS window тво ввести до 2006 г. Энергети- жается расход энергии на series sets new standards through ческий паспорт здания, где отопление. Это позволит удер- even greater efficiency in the указывается его энергопотребле- жать цену на Вашу недвижи- reduction of potential energy ние, и который станет основным мость в течение долгого време- losses. A heat transition coefficient фактором, определяющим цену ни. of 1.4 W/m²K (Schüco AWS 75.SI, при продаже или аренде здания. face width 117 mm) allows the Центральную роль будут играть heating costs of buildings to be ограждающие конструкции European governments are dramatically reduced – здания с теплоизолированными required to introduce the Building a worthwhile investment in helping оконными блоками. Energy Passport in 2006. It follows to maintain the value of real estate that the Energy Passport, which in the long term. В этой области новое поколение documents the energy consumed окон Schüco AWS будет устанав- by a building, will become a central ливать новые стандарты благо- factor in the sale or rental of real даря еще более эффективной estate. An energy-efficient building борьбе с возможными потерями envelope with thermally insulated энергии. При коэффициенте window systems will play a key role теплопередачи 1,4 Вт/м²K in this regard. Общий расход энергии на Primary energy consumption in тепло- и водоснабжение на existing stock taking typical примере офисного здания. office building as an example Расчет на примере офисного Calculation base: -15,70 % здания с полезной площадью Office building, 1640 m² usable 1640 м², площадью окон 472 м², area, window area 472 m², соответствующего нормам по standards of thermal insulation and теплоизоляции и отоплению 80-х heating technology from 1980s. годов. 242,2 кВт/м²K 204 кВтч/(м²a) The resulting saving of Получившаяся в результате 22.2 kWh/(m²a) usable area is экономия в размере 22,2 кВтч/ equivalent to a saving of approx. (м²a) полезной площади соот- 2 litres of oil per m³ or 3280 litres ветствует сокращению расхода per year for the building. мазута примерно на 2 л на м³ Расход энергии в здании со или 3280 л в год для всего The consumption of 3280 litres less старыми окнами здания. oil reduces CO2 emissions by Пример: Uw = 2,8 Вт/м²K Energy consumption with old 9.1 tonnes per year, equivalent to windows При уменьшении количества approx. 45,500 km car miles. Example: Uw = 2.8 W/m²K сжигаемого мазута на 3280 л, в Расход энергии в здании с окнами атмосферу выбрасывается на Schüco Окно AWS 75.SI 9,1 т в год меньше CO2 . Это Пример: Uw = 1,4 Вт/м²K соответствует количеству Energy consumption with выбросов автомобиля, Schüco Window AWS 75.SI проехавшего примерно Example: Uw = 1.4 W/m²K 45 500 км.
  • 21.
    20 │ Schüco Оконные, дверные и раздвижные системы Window, door and sliding systems Schüco Окно AWS 75.SI Schüco Window AWS 75.SI Максимальная прозрачность Highest possible transparency and конструкций и простор для design freedom combined with разнообразных дизайнерских trendsetting thermal insulation – решений в сочетании с превыша- the Schüco Window AWS 75.SI ющим даже современные creates new architectural требования уровнем теплоизоля- possibilities. ции – Schüco Окно AWS 75.SI открывает новые возможности The Schüco AWS 75.SI aluminium для архитектора. Оконная window system combines the система Schüco AWS 75.SI excellent thermal insulation соединяет в себе превосходные properties of PVC-U and timber теплоизоляционные свойства на windows with the unique уровне пластиковых и деревян- advantages of aluminium: durability ных окон с уникальными преиму- and stability, narrow face widths ществами алюминия. Долговеч- and a variety of designs – in large, ность и прочность, изящество и transparent formats. With a basic разнообразие вариантов оформ- depth of just 75 mm, this window ления светопрозрачных конструк- system offers excellent versatility ций большой площади. Монтаж- and is a superb complement to the ная глубина, составляющая Schüco range of doors. всего 75 мм, делает оконную систему почти универсальной и In combination with the concealed Schüco Окно AWS 75.SI позволяет комбинировать fittings Schüco AvanTec and Schüco Window AWS 75.SI оконные блоки с дверьми Schüco TipTronic, Schüco Schüco. В комбинации со AWS 75.SI meets the very highest скрытой фурнитурой Schüco standards in terms of both design AvanTec и Schüco TipTronic and ease of use. система Schüco AWS 75.SI отвечает самым высоким требованиям к дизайну и ком- форту. Schüco Окно AWS 75.SI Schüco Window AWS 75.SI Новый стандарт теплоизоляции The new thermal insulation для алюминиевых окон: standard for aluminium windows: ● Превосходная теплоизоляция ● Outstanding thermal insulation при монтажной глубине 75 мм: for basic depths of 75 mm: Uf = 0,9 – 1,6 Вт/м²K Uf values of 0.9 – 1.6 W/m²K ● Расширенная зона ● Increased insulation zone with теплоизоляции за счет foam-filled insulating bars использования специальных ● Optimised, co-extruded centre термомостов gasket ● Улучшенная конструкция ● Novel design of thermal коэкструдированного среднего insulation in glazing rebate уплотнителя ● Comprehensive profile range ● Новаторский принцип теплоизоляции в фальце ● Compatible with Schüco door стекла range ● Обширный ассортимент профилей ● Совместимость с дверьми Schüco
  • 22.
    Оконные, дверные ираздвижные системы Schüco │ 21 Window, door and sliding systems Schüco AWS 75.SI Системная оптимизация конструкции профиля улучшает показатели теплоизоляции и экономит энергию. Теплоизоляцию фальца обеспечивает вставка из спец. материала Schüco AWS 75.SI Thermal insulation of glazing System optimisation in the profile rebate with foam insulating improves thermal insulation and gusset saves energy. Трехкамерная конструкция оптимизирует теплоизоляцию Triple hollow chamber for optimised thermal insulation Коэкструдированный средний уплотнитель минимизирует потери тепла Minimised heat loss thanks to Масштаб 1:2 co-extruded centre gasket Scale 1:2 Оптимизация характеристик за счет использования термомостов из спец. материала Enlarged insulation zone with foam-filled insulating bar Schüco AWS 75 BS.HI Schüco AWS 75 BS.HI Самые высокие требования к For the highest thermal insulation теплоизоляции блочных окон: requirements in a block window ● превосходная теплоизоляция construction: при монтажной глубине 75 мм: ● Outstanding thermal insulation Uf = 1,8 Вт/м²K (видимая for basic depths of 75 mm: ширина 89 мм) Uf values of 1.8 W/m²K ● штапик незаметен (face width 89 mm) ● очень узкий профиль – 67 мм ● No visible glazing beads ● оптимизированные ● Very narrow face widths from характеристики за счет 67 mm использования специальных ● Enlarged insulation zone with термомостов foam-filled insulating bars ● улучшенная конструкция ● Optimised, co-extruded centre коэкструдированного среднего gasket уплотнителя ● Comprehensive profile range ● обширный ассортимент with mullion face widths of up to профилей включает профили 44 mm, double-vent windows стойки шириной до 44 мм, and glazing bars штульповые створки и декоративный переплет для Schüco Окно AWS 75 BS.HI створок Schüco Window AWS 75 BS.HI
  • 23.
    22 │ Schüco Оконные, дверные и раздвижные системы Window, door and sliding systems Schüco Окно AWS 75.SI Schüco Window AWS 75.SI Рама и створка внахлест Outer frame – face-fitted vent Стоечно-ригельная конструкция для глухого остек.и створка внахлест Transom/mullion for fixed glazing with face-fitted vent Штульповый профиль и створка внахлест Meeting stile with face-fitted vent Масштаб 1:2 Scale 1:2
  • 24.
    Оконные, дверные ираздвижные системы Schüco │ 23 Window, door and sliding systems Schüco Окно AWS 75 BS.HI Schüco Window AWS 75 BS.HI Рама и створка внахлест Outer frame – face-fitted vent Стоечно-ригельная конструкция для глухого остек.и створка внахлест Transom/mullion for fixed glazing with face-fitted vent Встраиваемые в фасад рамы и створка внахлест Insert outer frame with face-fitted vent Масштаб 1:2 Scale 1:2
  • 25.
    24 │ Schüco Оконные, дверные и раздвижные системы Window, door and sliding systems Schüco Окно AWS 70.HI Schüco Window AWS 70.HI Schüco Окно AWS 70.HI Schüco Window AWS 70.HI Высококачественная оконная The high quality window system система с обширным набором with comprehensive range of возможных решений: solutions: ● Улучшенные показатели ● Improved thermal insulation for теплоизоляции при монтажной basic depths of 70 mm: глубине 70 мм: Значение Uf values of 1.7 W/m²K коэффициента Uf = 1,7 Вт/м²K (face width 117 mm) (видимая ширина 117 мм) ● Also available as flush-fitted ● В качестве варианта vent, outward-opening vent or as предлагается окно с crank-operated turn/tilt solution располагаемой встык for large, heavy units створкой, открыванием наружу ● Wide range of profiles including или же окно с поворотно- the Schüco AWS 70 ST.HI and откидной створкой с Schüco AWS 70 RL.HI design воротковой ручкой – для systems тяжелых оконных блоков больших размеров ● Compatible with Schüco door range ● Обширный ассортимент профилей систем AWS 70 ST. HI и Schüco AWS 70 RL.HI Schüco Окно AWS 70.HI ● Совместимость с дверьми Schüco Window AWS 70.HI Schüco Schüco AWS 70.HI позволяет оригинальным образом расставить акценты Для классических зданий прекрасно подойдет система Schüco AWS 70 ST.HI, имитирующая стальные переплеты. При реставрации старинных зданий или просто в качестве интересного акцента в оформлении можно использовать конструкции Schüco AWS 70 RL.HI со скошенным внешним контуром. Schüco Окно AWS 70 ST.HI Schüco Окно AWS 70 RL.HI Система с узкими профилями, Вариант со скошенными внешними имитирующая стальной переплет контурами Individual accents with Schüco Window AWS 70 ST.HI Schüco Window AWS 70 RL.HI Schüco AWS 70.HI System with narrow steel contour Version with bevelled external contour The Schüco AWS 70 ST.HI system offers attractive steel designs suitable for classic buildings. The bevelled external contours of Schüco AWS 70 RL.HI make it ideally suited to refurbishment projects or simply as an eye-catching feature.
  • 26.
    Оконные, дверные ираздвижные системы Schüco │ 25 Window, door and sliding systems Schüco AWS 70 BS.HI Schüco AWS 70 BS.HI Узкие профили для эстетичных Slimline block construction to блочных окон: improve visual appearance: ● Хорошие показатели ● Good thermal insulation for basic теплоизоляции при монтажной depths of 70 mm: глубине 70 мм: Uf values of 2.0 W/m²K коэффициент Uf = 2,0 Вт/м²K (face width 89 mm) (ширина 89 мм) ● No visible glazing beads ● Незаметный штапик ● Also available as flush-fitted vent ● Возможно расположение ● Very narrow face widths from створок встык 67 mm ● Очень узкий профиль – 67 мм ● Enlarged insulation zone with Schüco Окно AWS 70 BS.HI Schüco Window AWS 70 BS.HI ● Оптимизированные foam-filled insulating bars характеристики за счет ● Comprehensive profile range использования термомостов из with mullion face widths of up to специального материала 44 mm, meeting rails and sash ● Оптимизированные bars характеристики за счет использования термомостов из специального материала ● В ассортимент профилей входят стойки до 44 мм, штульповые створки и шпросы Schüco AWS 70 WF.HI Schüco AWS 70 WF.HI Специальный экономичный The Schüco AWS 70 WF.HI system вариант ленточного остекления has been developed especially в системе Schüco AWS 70 WF.HI. В for the low cost construction of конструкции остекленного ribbon windows. Window façades фасада используются блочные are based on the Schüco окна Schüco AWS 70 BS.HI. AWS 70 BS.HI block window Варианты оформления solutions. The window façade застекленного фасада широко offers comprehensive design варьируются благодаря options with cover cap versions, многочисленным накладкам, structural mullions and the статическим стойкам и имитации suggestion of a mullion / transom стоечно-ригельных конструкций construction in the external view при видимой ширине 50 мм. with a 50 mm face width. Schüco Окно AWS 70 WF.HI с накладкой Schüco Window AWS 70 WF.HI with cover cap
  • 27.
    26 │ Schüco Оконные, дверные и раздвижные системы Window, door and sliding systems Schüco Окно AWS 70.HI Schüco Window AWS 70.HI Рама и створка внахлест Outer frame – face-fitted vent Стоечно-ригельная конструкция для глухого остек.и створка внахлест Transom/mullion for fixed glazing with face-fitted vent Штульповый профиль и створка внахлест Meeting stile with face-fitted vent Масштаб 1:2 Scale 1:2
  • 28.
    Оконные, дверные ираздвижные системы Schüco │ 27 Window, door and sliding systems Стоечно-ригельная конструкция для глухого остек.и створка внахлест Transom/mullion with face-fitted vent Встраиваемые в фасад рамы и створка внахлест Insert outer frame with face-fitted vent Масштаб 1:2 Scale 1:2
  • 29.
    28 │ Schüco Оконные, дверные и раздвижные системы Window, door and sliding systems Schüco Окно AWS 70 BS.HI Schüco Window AWS 70 BS.HI Рама и створка внахлест Outer frame – face-fitted vent Стоечно-ригельная конструкция для глухого остек.и створка внахлест Transom/mullion for fixed glazing with face-fitted vent Встраиваемые в фасад рамы и створка внахлест Insert outer frame with face-fitted vent Масштаб 1:2 Scale 1:2
  • 30.
    Оконные, дверные ираздвижные системы Schüco │ 29 Window, door and sliding systems Schüco Окно AWS 70 WF.HI Schüco Window AWS 70 WF.HI Рама и створка внахлест Outer frame – face-fitted vent Стоечно-ригельная конструкция для глухого остек.и створка внахлест Transom/mullion for fixed glazing with face-fitted vent Масштаб 1:2 Scale 1:2
  • 31.
    30 │ Schüco Оконные, дверные и раздвижные системы Window, door and sliding systems Schüco Окно AWS 70 ST.HI Schüco Window AWS 70 ST.HI Рама и створка внахлест Outer frame – face-fitted vent Глухое остекление с декоративной шпросой Fixed light with ornamental sash bar Штульповый профиль и створка внахлест Meeting stile with face-fitted vent Масштаб 1:2 Scale 1:2
  • 32.
    Оконные, дверные ираздвижные системы Schüco │ 31 Window, door and sliding systems Schüco Окно AWS 70 RL.HI Schüco Window AWS 70 RL.HI Рама и створка внахлест Outer frame – face-fitted vent Стоечно-ригельная конструкция для глухого остек.и створка внахлест Transom/mullion for fixed glazing with face-fitted vent Штульповый профиль и створка внахлест Meeting stile with face-fitted vent Масштаб 1:2 Scale 1:2
  • 33.
    32 │ Schüco Оконные, дверные и раздвижные системы Window, door and sliding systems Schüco Окно AWS 65 Schüco Window AWS 65 Schüco Окно AWS 65 Schüco Window AWS 65 Основная серия, включающая The basic series with разнообразные конструкции для comprehensive range for оригинального оформления: imaginative design: ● Улучшенная теплоизоляция ● Improved thermal insulation for при монтажной глубине 65 мм: basic depths of 65 mm: Uf =2,2 Вт/м²K (видимая Uf values of 2.2 W/m²K ширина 117 мм) (face width 117 mm) ● Профили рамы 51 мм ● Outer frames with face width ● Профили стоек шириной от from 51 mm 76 до 250 мм ● Mullion profiles with face widths ● Профили створок шириной от from 76 mm to 250 mm 33 мм ● Vent frame profiles of 33 mm ● Дополнительно: окно со face width and above створкой вровень с ● Available as flush-fitted or открыванием наружу outward-opening vent ● Обширный ассортимент ● Wide range of profiles including профилей, вкл.дизайнерскую the Schüco AWS 65 RL design систему Schüco AWS 65 RL system ● Совместимость с дверьми ● Compatible with Schüco door Schüco Окно AWS 65 Schüco range Schüco Window AWS 65 При выборе оконной системы все Comfort and ease of use are большее внимание уделяется matters of increasing importance in удобству. Жилье без препятствий the area of window systems. For передвижению является важным the elderly and needy, easy access определяющим качество жизни construction is an important factor фактором для пожилых и for an improved quality of life. For нуждающихся в уходе людей. further information, please refer to Нормы DIN 18024 и 18025 the DIN standards 18024 and содержат подробные сведения 18025. по данному вопросу. Schüco easy access thresholds are Надежным решением конструк- only 20 mm high and represent a ции дверей балконов и террас reliable solution for balcony and являются плоские пороги Schüco patio doors. These solutions are Балконная дверь с плоским порогом с высотой всего 20 мм. В первую well regarded in homes for the Schüco Окном AWS 65 Easy access window door with очередь они предназначены для aged and in hospitals. Schüco Window AWS 65 домов престарелых и больниц. Schüco AWS window systems На основе оконных систем allow for practical solutions for Schüco AWS создаются практич- turn/tilt and double-vent windows ные решения для поворотно- based on the concealed откидных и штульповых окон со Schüco AvanTec fittings. скрытой фурнитурой Schüco AvanTec.
  • 34.
    Оконные, дверные ираздвижные системы Schüco │ 33 Window, door and sliding systems Schüco AWS 65 BS Schüco AWS 65 BS Новое решение для блочных The new solution for block window конструкций с монтажной constructions with a basic depth глубиной 65 мм: of 65 mm: ● Хорошая теплоизоляция при ● Good thermal insulation for монтажной глубине 65 мм: basic depths of 65 mm: Uf = 2,4 Вт/м²K (видимая Uf values of 2.4 W/m²K ширина 89 мм) (face width 89 mm) ● Термомосты обеспечивают ● Larged insulation zone with оптимальную теплоизоляцию insulating bars ● Очень узкий профиль – 67 мм ● Very narrow face widths ● Скрытый штапик from 67 mm ● Обширный ассортимент ● No visible glazing beads профилей включает профили ● Comprehensive profile range стойки шириной до 44 мм, with mullion face widths of up штульповые створки и шпросы to 44 mm, meeting rails and для створок sash bars Schüco Окно AWS 65 BS Schüco Window AWS 65 BS Schüco AWS 65 предлагает Schüco AWS 65 also offers a разнообразные решения для comprehensive range of solutions специальных конструкций. Для for special design requirements. создания конструкций со смягченными контурами The rounded SL vent contour in идеальны профили створок SL с conjunction with the appropriate соответствующим штапиком. glazing bead is an attractive Скошенные наружные контуры solution for softer lines. With its системы Schüco Окно AWS 65 RL bevelled outer corners, the подходят для реставрации Schüco Window AWS 65 RL старинных зданий и позволяют system is ideally suited to расставить интересные акценты refurbishment projects or for в оформлении новостроек. visual emphasis. Schüco Окно AWS 65 SL Оконные системы серии Schüco Система профилей со скругленными AWS 65 также дают возможность The window systems of the контурами оригинальным образом Schüco AWS 65 series allow for Schüco Window AWS 65 SL System with rounded external contour расставить акценты. individual accents.
  • 35.
    34 │ Schüco Оконные, дверные и раздвижные системы Window, door and sliding systems Schüco Окно AWS 65 Schüco Window AWS 65 Рама и створка внахлест Outer frame – face-fitted vent Стоечно-ригельная конструкция для глухого остек.и створка внахлест Transom/mullion for fixed glazing with face-fitted vent Штульповый профиль и створка внахлест Meeting stile with face-fitted vent Масштаб 1:2 Scale 1:2
  • 36.
    Оконные, дверные ираздвижные системы Schüco │ 35 Window, door and sliding systems Schüco Окно AWS 65 BS Schüco Window AWS 65 BS Рама и створка внахлест Outer frame – face-fitted vent Стоечно-ригельная конструкция для глухого остек.и створка внахлест Transom/mullion for fixed glazing with face-fitted vent Встраиваемые в фасад рамы и створка внахлест Insert outer frame with face-fitted vent Масштаб 1:2 Scale 1:2
  • 37.
    36 │ Schüco Оконные, дверные и раздвижные системы Window, door and sliding systems Schüco Окно AWS – окно будущего Schüco Window AWS – fit for the future Экономия энергии Общая программа для Разнообразные решения с обеспечивается оптимизацией блочных окон системами Schüco теплоизоляции ● Новая монтаж.глуб.– 65 мм ● Решения для открывающихся ● Расширенная зона ● Решения для блочных окон с наружу окон теплоизоляции монтаж.глуб. 65, 70 и 75 мм ● Оконные профили для створок ● Улучшенная конструкция ● Улучшенная теплоизоляция вровень коэкструдированного среднего ● Решение для тяжелых оконных уплотнителя ● Небольшая вид.шир.– 67 мм блоков с поворотно-откидной ● Новый принцип теплоизоляции ● Незаметная створка створкой с воротковой ручкой в области фальца стекла ● Разнообразные варианты Разнообразные системы ● Термомост из вспененного конструкции углов: 90° и 135°, оформления для материала круглые стойки оригинальных конструкций ● Рамы вставных элементов со ● Вариант со скошенными стеклопакетами различной внешними контурами Schüco толщины AWS 65 RL и AWS 70 RL.HI ● Разнообразные решения для ● Имитация стального переплета статических и монтажных для реставрации зданий в стоек классическом стиле Schüco AWS 70 ST.HI ● Совместимость с системной фурнитурой Schüco AvanTec, ● Фасадная конструкция с Schüco TipTronic элементами на высоту этажа: Schüco AWS 70 WF.HI ● Балконная дверь с плоским порогом (высота: 20 мм) ● Профили створок со скругленными контурами Novel design of thermal Comprehensive solutions using insulation in glazing rebate tried-and-tested Schüco system ● Foam-filled insulating bars ● Solutions for outward-opening ● Integrated range for block windows systems ● Vent profiles for flush-fitted ● New basic depth of 65 mm windows ● Solutions for block systems with ● Solution for large, heavy units Schüco Окно AWS 75.SI basic depths of 65, 70 and 75 mm with crank-operated turn/tilt Schüco Window AWS 75.SI fitting ● Improved thermal insulation ● Multiple options for corner ● Narrow face widths from 67 mm designs: 90° and 135° corners ● Invisible vent frames and rounded mullions ● Insert outer frames for façades A wide variety of design systems with variable tolerances for individual constructions ● Varied solutions for structural ● Design systems with bevelled and expansion mullions external contour: Schüco AWS Energy saving through ● Can be combined with 65 RL and AWS 70 RL.HI optimised thermal insulation Schüco AvanTec and ● Steel contour for refurbishment Schüco TipTronic system fittings ● Enlarged thermal zone of period buildings: ● Easy access window door with ● Optimised, co-extruded Schüco AWS 70 ST.HI threshold (Height: 20 mm) centre gasket ● Window façade construction for ● Novel design of thermal storey-height infill panels: insulation in glazing rebate Schüco AWS 70 WF.HI ● Foam-filled insulating bars ● Vent profiles in SoftLine look
  • 38.
    Оконные, дверные ираздвижные системы Schüco │ 37 Window, door and sliding systems Sc o A 65 .HI 75 .HI I Sc o A 70 .HI Sc o A 70 HI .H F . co S 7 S S BS RL RL ST I I W .H .S B AW 0 B Sc o A 65 Sc o A 70 Sc o A 75 Sc o A 65 Sc o A 70 S S S S S S S S S hü W hü W hü W W hü W W hü W hü W hü W Sc o A c c c c c c c c c hü hü hü Sc Монтажная глубина Basic depth 65 мм 65 mm 70 мм 70 mm 75 мм 75 mm Тип конструкции Type of construction С теплоизоляцией Insulated С повышенной теплоизоляцией Highly insulated Коэффициент Uf Uf values Вт/м²K* 2,2 1,7 1,4 2,2 1,7 1,7 2,2 2,4 2,0 1,8 In W/m²K* Типы открывания Types of opening Окна с открыванием внутрь Inward opening windows Пов., пов.-отк., откидная створка Side hung (SH), turn/tilt (TT), bottom hung (BH) Створка откидная перед поворотом Tilt before turn (KvD) Штульповая створка Double vent Schüco TipTronic Schüco TipTronic Пов.-откидная створка с воротковой ручкой Crank-operated turn/tilt PASK створка Tilt/slide (PASK) Откидная створка фрамуги Toplight Створка вровень, пов., пов.-отк., откидная Flush-fitted as SH, TT, BH Окна с открыванием наружу Outward opening windows Поворотная, верхнеподвесная створка Side hung, top hung Ср/подв.и пов.створка со ср.верт.осью Horizontal and vertical pivot *Сочетание рамы и створки шириной *Outer frame / vent combination with 117/89 мм face width 117 / 89 mm Schüco Окно AWS 65 Schüco Окно AWS 70.HI Schüco Окно AWS 75.SI Обычная теплоизоляция Уменьшение потерь энергии Оптимизированная теплоизоляция Schüco Window AWS 65 Schüco Window AWS 70.HI Schüco Window AWS 75.SI Conventional thermal insulation Reduced energy losses Optimised thermal insulation properties
  • 39.
    38 │ Schüco Оконные, дверные и раздвижные системы Window, door and sliding systems
  • 40.
    Оконные, дверные ираздвижные системы Schüco │ 39 Window, door and sliding systems Фурнитура Fittings Линия ручек Schüco «Дизайн» Schüco range of handles Чтобы обеспечить единство To ensure that Schüco window, оформления оконных, дверных и door and sliding systems have a раздвижных блоков, Schüco была uniform style, Schüco has разработана комплексная линия developed a complete range ручек «Дизайн» - начиная с of handles, from manually or механических ручек или ручек с electrically-operated window электронным управлением, ручек handles and lift-and-slide handles для подъемно-раздвижных to door handles in a variety of блоков, а также дверных ручек designs. различной конфигурации. стр. 40 Page 40 Фурнитура Schüco AvanTec Schüco AvanTec fittings Полностью скрытая фурнитура This range of fully concealed не нарушает четких линий окна, и fittings allows for simple, при этом функционально ничем uncluttered lines with the same не уступает накладной performance features as a фурнитуре. surface-mounted fitting. стр. 41 Page 41 Фурнитура Schüco TipTronic Schüco TipTronic fittings Schüco TipTronic – это первая Schüco TipTronic is the first fully система поворотно-откидной mechatronic turn/tilt fitting and фурнитуры с combines intuitive operation in электромеханическими real time with automated building исполнительными элементами, technology. сочетающая в себе удобство управления в режиме реального времени и технологии автоматизации зданий. стр. 42 Page 42
  • 41.
    40 │ Schüco Оконные, дверные и раздвижные системы Window, door and sliding systems Линия ручек Schüco «Дизайн» Schüco range of handles Единый дизайн для любых A handle design for all функций areas of use Семейство универсальных ручек A range of handles for every с единым дизайном – потреб- occasion with one uniform style – ность в такой серии ощущалась the Schüco range of feature в промышленном, объектном и handles perfectly meets this жилом строительстве, и линия requirement from residential, ручек «Дизайн» Schüco идеально project and commercial practice. удовлетворяет этим потребнос- The combination of a clear, тям. Сочетание классических и timeless design and efficient современных четких линий с technology allows use in all эффективной работой дает sorts of applications: window возможность использовать эти handles, lift-and-slide and tilt/slide ручки для любых функций: systems, and door handles – both устанавливать их на механичес- manually or electrically operated. ких и автоматических окнах, PASK-блоках, дверях. . Единое гармоничное оформление ручек Schüco линии «Дизайн» A consistent style with the Schüco range of feature handles Отлично: линия ручек Schüco iF product design award 2006 iF product design award 2006 «Дизайн» Единая концепция дизайна The consistent design concept Outstanding: произвела впечатление на has impressed the renowned the Schüco range of handles авторитетный форум Industry Forum Design in Hanover. промышленного дизайна Indus- The Schüco range of design trie Forum Design в Ганновере: handles has received the ручки Schüco линии “Дизайн” prestigious iF Award 2006. были отмечены престижной премией iF-Award 2006. Оконные ручки Дверные ручки Ручки для раздвиж.дверей Handles for windows Door handles Door pulls for sliding doors GUVV GUVV + Поверхность: нержавеющая сталь, покраска в цвета RAL, анодирование EV 1, имитация нержавеющей стали Finish: stainless steel, RAL colours, EV 1, stainless steel appearance
  • 42.
    Оконные, дверные ираздвижные системы Schüco │ 41 Window, door and sliding systems Фурнитура Schüco AvanTec Schüco AvanTec fittings Schüco AvanTec (взломоустойчивость WK2 и WK3) Четкие линии полностью скрытой фурнитуры Schüco AvanTec уста- навливают новые стандарты. Взломоустойчивость WK1-WK3 гарантирует высокую безопас- ность, сохраняя при этом привле- кательный внешний вид. Характеристики и преимущества: ● Модульная многоступенчатая концепция взломоуст-ти с блокираторами, противосъем- ной защитой и высверливания ● Изящная взломоустойчивая ручка с замком или кнопкой ● Ручка AvanTec с дистанцион- ным управлением в стиле Schüco ● Возможна установка встраива- емого магнитного выключателя Скрытые взломоустойчивые элементы Schüco AvanTec с контролем запирания Security invisible from outside with Schüco AvanTec ● Вес створки - до 130 кг Schüco AvanTec with WK2 and WK3 burglar resistance The fully concealed Schüco AvanTec fitting sets new standards with its clear, unbroken lines. Even for burglar resistance classes WK1 to WK3, the fittings system guarantees high security standards without compromising design. Features and benefits ● Modular, multi-layer safety concept with robust security locking, anti-drill protection and protection against levering out. ● Attractive WK handle, lockable or with push-button Элемент WK2 – с минимум 4 скрытыми Элемент WK3 – с минимум 8 скрытыми ● Intuitive AvanTec remote control взломоустойчивыми блокираторами взломоустойчивыми блокираторами handle in the design of the Burglar-resistant to WK2 with a minimum of Burglar-resistant to WK3 with a minimum of 4 concealed security locking points 8 concealed security locking points Schüco handle range ● VdS approved magnetic switch for monitoring of opening and closing may be integrated ● Vent weights up to 130 kg
  • 43.
    42 │ Schüco Оконные, дверные и раздвижные системы Window, door and sliding systems Фурнитура Schüco TipTronic Schüco TipTronic fittings Schüco TipTronic, класс взло- Schüco TipTronic with WK2 моустойчивости WK2 burglar resistance Schüco TipTronic – первая Schüco TipTronic is the first система электромеханической fully mechatronic turn/tilt fitting, поворотно-откидной фурнитуры, linking the whole world of building сочетающая в себе интуитивно automation with intuitive operation. понятное управление в режиме Both individual windows and реального времени и технологии window groups can be автоматизации зданий. conveniently operated by time and Как отдельные, так и объединен- sensor controls as well as by PC, ные в группы окна можно mobile phone or at the push of a открывать по сигналу таймера и button. The tilt drive with its показаниям датчиков с помощью integrated anti-finger-trap feature компьютера, мобильного телефо- and optional connecting block на или выключателя. Откидыва- means Schüco Tiptronic offers ющий створку привод со встроен- twice as much security and ной защитой от защемления comfort. пальцев и дополнительным Оконная ручка Schüco TipTronic блоком позволяет Schüco Schüco TipTronic in security Schüco TipTronic window handle TipTronic обеспечить максималь- class WK2 is based on the ную безопасность и удобство. tried-and-tested, concealed AvanTec security technology. Система Schüco TipTronic класса Отлично: окно Schüco WK2 использует технологию Magnetic switches are used to TipTronic AvanTec. monitor and feedback on windows Outstanding: linked up to the building Schüco TipTronic window Магнитные выключатели управ- management technology system ляют положением окна и переда- and control any alarm systems. ют информацию в систему “умного дома” и сигнализации Features and benefits ● Modular security concept with Характеристики и robust security locking преимущества ● Monitoring of window position ● Модульная концепция с via bi-directional communication прочными взломоустойчивыми for building control as standard блокираторами function (open / closed) ● Стандартная функция контро- ● VdS approved magnetic switch ля положения окна посредс- for monitoring of opening and твом двусторонней связи с closing may be integrated системой «умного дома» (открыто/закрыто) ● High resistance to corrosion through use of stainless steel ● Возможна установка встраива- for load-bearing parts емого в раму магнитного выключателя контроля ● iF product design award 2006 запирания ● Vent weights up to 130 kg: ● Несущие из нержавеющей sizes w x h = 2100 x 1300 or стали обеспечивают высокую 2500 x 1000 mm устойчивость к коррозии ● iF product design award 2006 за отличный дизайн Фурнитура Schüco TipTronic Schüco TipTronic fitting ● Вес створки до 130 кг: Размеры ш х в = 2100 x 1300 или 2500 x 1000 мм
  • 44.
    Оконные, дверные ираздвижные системы Schüco │ 43 Window, door and sliding systems Фрамуги с фурнитурой Toplights with Schüco TipTronic Schüco TipTronic fitting Новая фурнитура для фрамуг The new Schüco toplight fitting is a Schüco представляет собой convenient, mechatronic alternative альтернативную систему с to manual fitting. The concealed электромеханическими исполни- hinge side and lack of surface- тельными элементами. Фурниту- mounted fittings components allow ра полностью скрыта со стороны for a design with narrow inner face петель, накладные детали widths. In addition, the new отсутствуют. Это позволяет AvanTec remote-control handle изготавливать элементы с offers the option of operating небольшой видимой шириной. toplights directly using TipTronic Новая ручка AvanTec непосредс- by remote control. твенно управляет движением створок с фурнитурой TipTronic с Features and benefits пульта дистанц.управления. ● Fully concealed system solution based on Schüco TipTronic Характеристики и fitting преимущества ● Operated via push-button, ● Системное решение для AvanTec remote control handle, Системное решение для фрамуг: удобное фурнитуры Schüco TipTronic обслуживание с пульта ДУ PC and central building System solution for toplights: easy ● Управление с помощью management system operation per remote control выключателя, ручки AvanTec, ● Additional functions possible компьютера, ЦПУ систем автоматизации здания ● Monitoring of window position via bi-directional communication ● Возможны дополнительные for building management функции ● VdS approved magnetic switch ● Система автоматизации for monitoring of opening and здания осуществляет контроль closing may be integrated положения створки ● Vent weights up to 130 kg ● Магнитный выключатель контроля запирания ● Вес створки - до 130 кг Концепция неподвластного Room design across the времени пространства generations Немецкое общество The Deutsche Gesellschaft für геронтотехники® (GGT) Gerontotechnik® (GGT) (German занимается вопросами жилья с Society for Geronto Technology) точки зрения безопасности, is concerned with comfort, Отмечен знаком Немецкого общества функциональности и эстетики security, functionality and good геронтотехники® - эксперта по вопросам комфорта и качества жилья. В рамках инициативы design across the generations. Awarded by the GGT LEBENS|T|RAUM BAD, в которой The market leader initiative (German Society for Geronto Technology) – участвуют фирмы Busch-Jaeger, LEBENS|T|RAUM BAD, the expert partner for comfort and quality Grohe, Keramag, Sam, Schüco и (DREAM BATHROOM) which Trilux, была разработана includes the manufacturers концепция пространственного Busch-Jaeger, Grohe, Keramag, решения и оформления ванной Sam, Schüco and Trilux, has комнаты. Важным элементом developed a space concept for этой единой концепции является bathroom design. A key component мехатронная фурнитура для of the main concept is the поворотно-откидных окон Schüco mechatronic Schüco TipTronic TipTronic. turn/tilt window fitting.
  • 45.
    44 │ Schüco Оконные, дверные и раздвижные системы Window, door and sliding systems
  • 46.
    Оконные, дверные ираздвижные системы Schüco │ 45 Window, door and sliding systems Дверные системы Door systems Сетевые устройства контроля Networked Schüco access доступа Schüco для дверей. control for door systems Системами ограничения доступа Biometric access authorisations по биометрическим данным can now be administered anywhere через сеть Schüco Fingerprint in the world online from your PC можно управлять в режиме он- using the Schüco Fingerprint лайн с любого компьютера - Network – securely, conveniently, надежно, удобно и экономично. and cost effectively. стр. 46 Page 46 Встроенный предохранитель Integrated Schüco emergency для дверей аварийного door security выхода Schüco The Schüco system now includes Система Schüco предлагает attractive emergency door locking первый встроенный предохрани- directly integrated into the door тель, устанавливаемый в profile and in immediate proximity непосредственной близости от to the emergency fitting – also in фурнитуры дверей аварийного networked online operation if выхода. Может управляться в required. режиме он-лайн. стр. 48 Page 48 Дверные блоки с плоским Easy access door systems порогом The use of Schüco standard Сочетание стандартных компо- components perfectly tailored to нентов Schüco, конструкция each other allows the realisation of которых идеально согласована, simple, functional solutions for позволяет находить простые, easy access door systems with функциональные решения для clear opening dimensions. дверных блоков с плоским порогом, открывающихся на ширину проема. стр. 49 Page 49
  • 47.
    46 │ Schüco Оконные, дверные и раздвижные системы Window, door and sliding systems Сетевые устройства контроля доступа Schüco для дверных систем Networked Schüco access control for door systems Надежные и удобные в Comfort in security, operation эксплуатации, с интересным and design дизайном Schüco aluminium door systems Алюминиевые дверные системы offer individual access control for Schüco могут оснащаться residential and commercial устройствами индивидуального buildings. The new, networked контроля доступа для жилых и Schüco Fingerprint system allows коммерческих зданий. Новая the increased demands in terms of сетевая система доступа по security, ease of use and low cost отпечатку пальца позволяет to be accommodated now and in найти перспективные решения, the future. As one of the most отвечающие растущим secure methods, this authentication требованиям к безопасности, by fingerprint guarantees the комфорту и экономичности. highest possible level of protection Идентификация по отпечатку in comparison with conventional пальца является одним из methods. The Schüco Fingerprint наиболее эффективных system integrated with the door современных методов profile offers new design options обеспечения безопасности. and impressive user comfort. Кроме того, встраиваемая в дверной профиль система Schüco Fingerprint расширяет Schüco Fingerprint с устройством возможности дизайна и считывания магнитных карт предоставляет дополнительные Schüco Fingerprint system with integrated удобства. row sensor Устанавливаемый на стене внешний блок Surface-mounted external unit Накладные блоки системы Schüco Fingerprint гарантируют безопасность и комфорт Add-on system solutions with Schüco Fingerprint ensure security and comfort
  • 48.
    Оконные, дверные ираздвижные системы Schüco │ 47 Window, door and sliding systems Сеть Schüco Fingerprint Сетевые системы требуются там, где ограничен доступ в здания, к лифтам или архивам. Система Schüco Fingerprint состоит из сервера терминала, соединенного локальной сетью с отдельными терминалами (дверными датчиками). Предоставление права доступа, регистрация новых пользователей и администрирование сети осуществляются централизованно с помощью программы Schüco Admin, устанавливаемой на любом компьютере в любой точке мира. Schüco Fingerprint Network Networked systems should be used everywhere where, for Новые пользователи регистрируются с помощью компьютера security-sensitive areas such as New users can be created from the comfort of a PC main entrances, lifts and archives, there is a need for individual access authorisation. The Schüco Fingerprint system consists of a terminal server which Характеристики и Features and benefits communicates with the individual преимущества terminals (door sensors) per ● Direct user identification allows LAN connection. Assignment and ● Непосредственная personalised information to be cancellation of access rights, идентификация пользователя logged creation of new users and user дает возможность отслеживать ● Keys may no longer be administration is performed using его действия forgotten, lost or copied Schüco Admin software simply and ● Ключ невозможно забыть, ● Alarm finger function: certain centrally on a PC – from any потерять или передать fingerprints can trigger silent location anywhere in the world. ● Сигнализация: некоторые alarms on doors отпечатки пальцев запускают ● Easy importing of user data беззвучный сигнал тревоги using USB finger scanner on PC ● Через USB-сканер отпечатки ● Combination options with пальцев передаются на existing door speaker systems, компьютер code locks or card-reading ● Совместимость с devices переговорными устройствами, ● Integration in an existing network кодовыми замками или via RS485 / LAN converter замками на магнитных картах ● Profile-integrated or add-on ● Подключение к сети через system solutions конвертор RS485 / LAN ● Системы со встроенными в профиль или накладными устройствами
  • 49.
    48 │ Schüco Оконные, дверные и раздвижные системы Window, door and sliding systems Предохранитель для дверей аварийного выхода Schüco Integrated Schüco emergency door security В стандартных системах устанав- Conventional systems prevent ливаемые отдельно от дверного incorrect use of emergency doors блока предохранители препятс- through security devices outside твуют несанкционированному the door constructions – attached использованию дверей аварий- to the wall often more than one ного выхода. Предохранитель metre away. The new Schüco чаще всего устанавливается на emergency door system is a стене более чем в метре от brand-new solution integrated in двери. Новый предохранитель the door profile with emergency Schüco впервые предлагает button located directly on the встроенное в дверной профиль emergency fitting. This allows устройство с аварийной кнопкой faster operation both on site and на фурнитуре. Это позволяет via networked online operation, быстро открыть дверь как thereby optimising building security. Встроенный предохранитель двери аварийного выхода Schüco с находясь непосредственно перед аварийной кнопкой в непосредственной ней, так и передав соответствую- близости от дверной фурнитуры. щую команду по сети, что Integrated Schüco emergency door оптимизирует уровень безопас- operation with emergency button in ности здания. immediate proximity to anti-panic fitting Характеристики и преимущества ● Блокировка двери аварийного выхода в непосредственной близости от фурнитуры аварийной двери ● Сертифицировано для сетевой он-лайн работы в соответствии с Elt VTR-RL ● Подключение к системам автоматизации здания: напр., к сигнализации или системе ограничения доступа ● Ширина проема не ограничивается вертикальными элементами Features and benefits ● Emergency door security in direct proximity to panic fitting Объединенные в сеть системные решения ● Approved in accordance with гарантируют высокий уровень Elt VTR-RLOnline system for безопасности здания. High building security through integration networked operation of networked system solutions ● Integration in building network technology, e.g. connection to warning systems or access control ● No limitation of access width by pillars
  • 50.
    Оконные, дверные ираздвижные системы Schüco │ 49 Window, door and sliding systems Дверные блоки с плоским порогом Easy access door systems В общественных зданиях в Германии, например, офисах, больницах, а также домах престарелых и медицинских учреждениях обязательно должны использоваться двери с плоским порогом. В частных домах все больше людей придает значение отсутствию порогов. Schüco предлагает согласованные комплексные решения, включающие стандартные элементы для простого и эффективного проектирования дверей с плоским порогом, соответствующих требованиям, предъявляемым к общественным, частным и производственным зданиям. In Germany, equality laws necessitate that public buildings such as offices, hospitals and old people’s homes must have easy access. In residential buildings, Дверной блок с плоским порогом и easy access living is a matter of скрытыми петлями Easy access door system with importance for more and more concealed hinge people. Schüco supplies inclusive solutions from combined standard components for simple and efficient planning of easy access door systems – for all types of building, whether public, private and commercial. Характеристики и Features and benefits преимущества ● Harmonised total solution for ● Комплексное решение для easy access construction зданий с плоскими порогами ● Concealed door hinge for ● Скрытые петли позволяют completely clear opening использовать проем целиком dimensions ● Сочетание входных систем без ● Simple implementation of an ключа или с дист.управлением, automatic door system through приводов поворотных дверей и system combination of keyless ригельных замков с защелкой entry or remote system, swing Schüco SafeMatic упрощают door motor and Schüco установку автоматич.дверей. SafeMatic latch-and-bolt lock ● Самоблокирующийся ригель- ● Self-locking Schüco SafeMatic ный замок с защелкой Schüco latch-and-bolt lock with lever SafeMatic и ручкой на высоте door handle at 850 mm in 850 мм (DIN 18024) accordance with DIN 18024 ● Нижняя часть без порога с ● Easy access threshold with уплотнителем автоматической automatic door seal двери
  • 51.
    50 │ Schüco Оконные, дверные и раздвижные системы Window, door and sliding systems
  • 52.
    Оконные, дверные ираздвижные системы Schüco │ 51 Window, door and sliding systems Раздвижные системы Sliding systems Система приводов Schüco Schüco e-slide drive system for e-slide для раздвижных дверей sliding door systems Новаторский дизайн без ручки Innovative handle-less design with при максимальном удобстве maximum user comfort – Schüco пользования: с автоматическими e-slide sets new standards through устройствами для раздвижных и automation of large sliding and подъемно-раздвижных дверей lift-and-slide units. большой площади Schüco e-slide устанавливает новые стандарты. стр. 52 Page 52 Автоматическая раздвижная Schüco ASS 65 automatic дверь Schüco ASS 65 automatic sliding door Удобное и элегантное Comfort and design-oriented комплексное решение от Schüco, Schüco complete solution for предназначенное для входных entrance areas with high volume групп в зданиях с интенсивными traffic – system tested from a single людскими потоками, прошло source. системную проверку и поставляется «из одних рук». стр. 54 Page 54
  • 53.
    52 │ Schüco Оконные, дверные и раздвижные системы Window, door and sliding systems Система приводов Schüco e-slide для раздвижных дверей Schüco e-slide drive system for sliding door systems Большие прозрачные открывающиеся элементы с простым управлением Large, transparent opening units with excellent ease of operation Автоматическая, полностью Opening, closing and locking скрытая система Schüco e-slide large-format sliding and lift-and- позволяет без усилий открывать, slide units – automatically using the закрывать и запирать fully concealed Schüco e-slide раздвижные и подъемно- system. The integration of all drive раздвижные элементы. Все components into the leaf of the элементы привода встроены в Royal S 120+ and Royal S 160.HI створки систем Royal S 120+ и systems allows for completely new Royal S 160.HI, что позволяет handle-less design solutions with создать совершенно новые streamlined appearance. The leaf конструкции с четкими линиями units slide quietly using powerful без дверных ручек. Мощными motors that can be controlled via приводами беззвучно скользящих an operating panel integrated in the створок удобно управлять с leaf, buttons located elsewhere in помощью встроенного в створку the room, or centrally using блока, выключателя в building management technology. помещении или центрального блока управления системами автоматизации здания.
  • 54.
    Оконные, дверные ираздвижные системы Schüco │ 53 Window, door and sliding systems Характеристики и Features and benefits преимущества ● Concealed, profile-integrated ● Встроенная в профиль скры- motorised fittings system for тая система приводов для lift-and-slide systems подъемно-раздвижных (Royal (Royal S 160.HI, Royal S 120+) S 160.HI, Royal S 120+) и and sliding systems раздвижных систем (Royal S 120+) (Royal S 120+) ● New, handle-free design ● Новый дизайн с четкими solutions with clear, unbroken линиями без дверных ручек lines ● Внутренняя и наружная ● Differently coloured profile поверхности могут быть surfaces (inside and outside) выполнены в разных цветах ● Leaf weights up to 250 kg ● Вес створки – до 250 кг ● Leaf sizes up to ● Максимальный размер створок 3000 mm x 3000 mm 3000 мм х 3000 мм ● Comfort functions, ● Дополнительные функции, e.g. night ventilation напр., щелевое проветривание ● Intelligent software protects ● Безопасность людей, persons, objects or motors конструкций и самих приводов against excessive load and обеспечивает программа, reversal of motor реагирующая на перегрузки и ● Can be controlled through изменение хода привода building management Плоская панель управления Flat control panel ● Управляется системами technology автоматизации здания ● Additional security through ● Устройство контроля движения monitored leaf operation створок (опция) для (optional) дополнительной надежности Подъемно-раздв. блок Royal S 160.HI Lift-and-slide system Royal S 160.HI Масштаб 1:2 Scale 1:2
  • 55.
    54 │ Schüco Оконные, дверные и раздвижные системы Window, door and sliding systems Автоматическая раздвижная дверь Schüco ASS 65 automatic Schüco ASS 65 automatic sliding door Комплексное элегантное системное решение входных групп Comprehensive, elegant system solution for entrance area Удобные и элегантные входные Comfortable, attractively designed группы можно полностью entrance areas can be realised автоматизировать с помощью using the complete Schüco ASS 65 комплексной системы Schüco automatic sliding door system. With ASS 65 automatic. Совместимость its harmonised components, the элементов позволяет создавать tested systems solution with проверенные системные optimised interfaces offers the решения с оптимизированной utmost in security and reliability, конструкцией соединений, including for buildings with high обеспечивающие максимальную volumes of people such as retail безопасность и надежность в stores. местах с интенсивным людским потоком, например, в предприятиях розничной торговли.
  • 56.
    Оконные, дверные ираздвижные системы Schüco │ 55 Window, door and sliding systems Вертикальное сечение привода автоматической раздвижной конструкции Schüco ASS 65 automatic Vertical section through the motor of the Schüco ASS 65 automatic sliding system Масштаб 1:2 Scale 1:2 Характеристики и Features and benefits преимущества ● Complete system, consisting of ● Комплексная система, вкл. aluminium profiles and motor алюминиевые профили, with all control and security привод, элементы управления components и взломоустойчивые эл-ты ● Door profiles in thermally ● Дверные профили с/без insulated and non-thermally теплоизоляции insulated versions ● Удобные проемы двери ● Comfortable opening dimensions шириной до 3000 мм of up to 3000 mm possible ● Одно- или двустворчатые ● Large single and double-leaf двери (макс.100 кг) большой door systems with max. 100 kg площади leaf weight ● Система cоответствует ● Door system tested in требованиям DIN 18650 accordance with DIN 18650 ● Сертификат пригодности для ● Approved for emergency exits путей эвакуации и аварийных and escape routes (optional) выходов (опция) ● A variety of convenience ● Различные дополнительные functions, e.g. sliding doors and удобные функции, например, use as porch раздвижные двери или перегородки
  • 57.
    56 │ Schüco Фасады и зимние сады Façades and conservatory systems Фасады и зимние сады Façades and conservatory systems Современные фасады придают Modern façade design endows a зданию индивидуальность, building with character and makes делают его привлекательным, а it attractive to the eye, whilst also также отражают его функцио- expressing its function and нальность и эффективность. efficiency. Schüco façade systems Фасадные системы Schüco fulfil the highest architectural соответствуют высочайшим standards in terms of design, требованиям к дизайну, техноло- engineering and functionality, and гии и функциональности. Они have proved themselves at an прекрасно зарекомендовали international level. Compatibility себя на практике в разных with all Schüco systems, including странах мира. Совместимость с the new Schüco AWS window системами Schüco, вкл. новые range, reliable planning and оконные системы Schüco Окно fabrication, and a high level of AWS, качественное проектирова- design freedom offer unique ние и изготовление, а также benefits to both architects and широкий спектр вариантов planners. оформления предлагают архи- текторам и проектировщикам уникальные возможности. Schüco Фасад SFC 85 Schüco Фасад FW 60+SG Schüco Façade SFC 85 Schüco Façade FW 60+SG Schüco Фасад SFC 85 предлагает Дополнение к системе FW 60+SG новые решения фасадов со сделало возможным возведение структурным остеклением. В идеально плоских стеклянных качестве возможных вариантов фасадов. При этом допускается предлагаются три типа остекле- изготовление тяжелых блоков со ния с соответствующим штапи- стеклом большой площади. . ком. The FW 60+SG system The Schüco Façade SFC 85 offers enhancement allows the new solutions for the construction construction of flush-fitted glass of structural glazing façades. façades, making even very large Three glazing types (including and heavy glazing a reality. glazing bead options) are available. стр. 58 стр. 60 Page 58 Page 60
  • 58.
    Фасады и зимниесады Schüco │ 57 Façades and conservatory systems Schüco Фасад SMC 50 Schüco Зимний сад COC 50 Schüco Façade SMC 50 Schüco Conservatory COC 50 Модульная фасадная система Новая система модульных обеспечивает оптимальный зимних садов на основе фасад- уровень теплоизоляции при ной системы Schüco SMC 50. минимальных затратах. Innovative conservatory system The modular façade system offers with modular construction, based optimised thermal insulation as on the Schüco SMC 50 façade cost effectively as possible. system. стр. 62 стр. 64 Page 62 Page 64
  • 59.
    58 │ Schüco Фасады и зимние сады Façades and conservatory systems Schüco Фасад SFC 85 Schüco Façade SFC 85 Фасадная система Schüco SFC 85 – это новый вариант фасада со структурным остеклением со встроенными в несущие конструкции элемента- ми открывания. Новое поколение фурнитуры, установленной в несущей конструкции, позволяет устанавливать створки весом до 250 кг. The Schüco SFC 85 façade system is a new version of the all-glass façade where the opening units are integrated with the support structure. A new generation of fittings incorporated into the support structure allows the integration of vents weighing up to 250 kg. Новый фасад со структурным остеклением Schüco SFC 85 New Schüco SFC 85 structural glazing façade Вертикальное сечение со ступенчатым стеклопакетом и встроенным приводом открывания Vertical section with stepped glazing unit and integrated opening motor Масштаб 1:2 Scale 1:2
  • 60.
    Фасады и зимниесады Schüco │ 59 Façades and conservatory systems Масштаб 1:2 Scale 1:2 Горизонтальное сечение со стандартными Горизонтальное сечение со стеклопакетом и штапиком стеклопакетами Horizontal section with double glazed unit and glazing beads Horizontal section with standard glazing unit Характеристики и Features and benefits преимущества ● Structural glazing façade with ● Фасад со структурным остек- thermal break лением с терморазрывом ● Opening units fully integrated ● Полностью встроенные в into the load-bearing structure, несущие конструкции элемен- also in combination with ты открывания, в т.ч. в сочета- concealed motor drive нии со скрытым эл/приводом ● Видимая ширина 85 мм ● 85 mm face width ● Три типа остекления (ступен- ● Three glazing types (stepped чатый стеклопакет, стандарт- double glazing, standard double ный стеклопакет и штапик) glazing and glazing beads) allow обеспечивают простор для for a great deal of design разнообразных дизайнерских freedom решений ● New generation of vent fittings: ● Новое поколение фурнитуры: vent weights up to 250 kg вес створки может достигать possible 250 кг ● Schüco AWS 102 window insert ● Из вставных элементов Schüco unit as projected top-hung Окно AWS 102 изготавливают- ся верхнеподвесные или window or parallel-opening параллельно-отставные окна window
  • 61.
    60 │ Schüco Фасады и зимние сады Façades and conservatory systems Schüco Фасад FW 60+SG Schüco Façade FW 60+SG Schüco Фасад FW 60+SG допол- The Schüco Façade FW 60+SG is няет зарекомендовавшую себя an enhancement to the tried-and- на практике фасадную систему tested all-glass FW 50+SG façade со структурным остеклением system. The new system uses the FW 50+SG. Новая система comprehensive range of load- использует обширный ассорти- bearing structures of the FW 60+ мент несущих конструкций basic system. The flush structural базовой системы FW 60+. Гладкая поверхность структурно- glazing appearance is achieved го остекления достигается through use of the modified system благодаря использованию components of the FW 50+SG модифицированых системных façade. элементов FW 50+SG Фасад со структурным остеклением FW 60+SG FW 60+SG all-glass façade Масштаб 1:2 Scale 1:2 Вертикальное сечение с новым плоским остеклением с исп.уплотнителей и мостов для ст/пакетов до 380 кг Vertical section with new, flush-fitted dry glazing and heavy duty glazing supports up to 380 kg
  • 62.
    Фасады и зимниесады Schüco │ 61 Façades and conservatory systems 60 105 8 11 20 6 Масштаб 1:2 20 Scale 1:2 Горизонтальное сечение с П-образ- Горизонтальное сечение с новым плоским ным остеклением с использованием остеклением с использованием уплотнителей уплотнителей и элемент открывания Horizontal section with U-shaped Schüco Окно AWS 102 dry glazing Horizontal section with new, flush-fitted dry glazing and Schüco Window AWS 102 opening unit Характеристики и Features and benefits преимущества ● Structural glazing façade for ● Фасад со структурным glazing weights up to остеклением для стекол весом max. 380 kg до 380 кг ● Extended combination options of ● Дополнительные возможности glazing thickness of internal and комбинирования внешних и external pane (6, 8, 10, 12 and внутренних стекол (6, 8, 10, 12 14 mm) for a gap between panes и 14 мм) с дистанционной of 20 mm рамкой 20 мм ● Schüco Window AWS 102 in ● Вставные теплоизолирован- insulated version with greatly ные элементы Schüco Окно improved Uf value of AWS 102 со значительно up to 2.78 W/m²K улучшенным Uf до 2,78 Вт/м²K ● Especially low-cost, ● Schüco Окно AWS 102 non-insulated version of поставляется также в Schüco Window AWS 102 also экономичном исполнении без available теплоизоляции ● New generation of fittings for ● Новая фурнитура для створок vent weights up to 250 kg весом до 250 кг ● Flush-fitted silicone dry sealing ● Силиконовый уплотнитель для плоских конструкций
  • 63.
    62 │ Schüco Фасады и зимние сады Façades and conservatory systems Schüco Фасад SMC 50 Schüco Façade SMC 50 Новая система модульных фасадов Schüco SMC 50 облада- ет отличными теплоизолирующи- ми свойствами и отличается высочайшим качеством и систем- ной надежностью при минималь- ных сроках изготовления. . The new Schüco SMC 50 modular façade system offers impressive thermal insulation properties, excellent quality, and through its system security – as well as the shortest fabrication times. Модульный фасад Schüco SMC 50 Schüco SMC 50 modular façade Масштаб 1:2 Scale 1:2 Горизонтальное сечение Schüco SMC 50 Горизонтальное сечение Schüco SMC 50: horizontal section Schüco SMC 50.HI Schüco SMC 50.HI: horizontal section
  • 64.
    Фасады и зимниесады Schüco │ 63 Façades and conservatory systems Принцип конструкции фасада Модульный фасад Schüco, в отличие от традиционного фасада, состоящего из множест- Модуль 1 – статический модуль ● Одинаковые профили стоек и ригелей ва отдельных деталей, включает ● Острые ребра профилей при незначи- все три основных блока, постав- тельном радиусе скругления – 0,5 мм ляемых практически полностью Module 1 – structural module собранными: ● Same mullion and transom profiles ● Sharp-edged appearance with small profile radii of 0.5 mm Модуль 1 – статика Модуль 2 – теплоизоляция и герметизация Модуль 3 – декоративная функция Модуль 2 – функциональный модуль ● Профиль для водоотвода с протянутым уплотнителем и изоляционным блоком Façade design ● Принцип перекрывающихся уплотните- Unlike a conventional façade лей для водоотвода Module 2 – function module consisting of numerous individual ● Drainage profile with inserted seal and components, the Schüco modular insulation block façade consists of only three ● Overlapping drainage design modules, each prefabricated to a large degree: Модуль 3 – декоративный модуль ● Прижимной профиль с протянутым упл. Module 1 for structural ● Обширный ассортимент накладок для components любого архитектурного решения Module 2 for thermal insulation • Видимая ширина 50 мм Масштаб 1:2 Module 3 – design module and sealing Scale 1:2 ● Pressure plate with inserted gasket Module 3 for the design ● Varied range of cover caps to suit every architectural requirement ● 50 mm face width Характеристики и Features and benefits преимущества ● High energy savings thanks to ● Очень низкое значение Uf extremely low Uf values обеспечивает максимальное энергосбережение ● Top quality and system ● Высокая степень предвари- security through high level of тельной сборки гарантирует prefabrication отличное качество и систем- ● Greatly reduced fabrication ную надежность times ● Значительное сокращение времени изготовления ● Identical inner face width of ● Внутренние уплотнители стоек mullion and transom seals и ригелей выглядят одинаково ● May be combined with all ● Возможность сочетания с invisible screw-fitted cover caps любыми накладками со скры- belonging to FW 50+ façade тыми винтовыми соединения- system ми фасадной системы FW 50+ ● Внутренние и наружные ● Inner and outer glazing rebate уплотнители стеклопакета gaskets are inserted at the устанавливаются на произ- factory водстве ● Straight-cut transom profiles ● Раскрой ригельных профилей without loss of the overlap под прямым углом при соблю- drainage principle дении принципа перекрываю- щихся уплотнителей при водоотводе
  • 65.
    64 │ Schüco Фасады и зимние сады Façades and conservatory systems Schüco Зимний сад COC 50 Schüco Conservatory COC 50 Новая система для зимних садов Горизонтальное сечение Schüco COC 50 – результат стропил с высокой теплоизоляцией последовательного развития Horizontal section системы для зимних садов WI 60 through the highly на основе новой модульной insulated rafters фасадной системы Schüco SMC 50. Результат: высокая степень предваритель- ной сборки обеспечивает отличную теплоизоляцию в сочетании с высоким системным качеством и надежностью. The Schüco COC 50 system is a new and innovative conservatory construction and the logical development of the WI 60 conservatory system based on the new Schüco SMC 50 modular façade system. The result: outstanding thermal insulation plus optimised system quality and security thanks to a high level of prefabrication of individual components. Масштаб 1:2 Scale 1:2 Schüco Зимний сад COC 50 Schüco Conservatory COC 50
  • 66.
    Фасады и зимниесады Schüco │ 65 Façades and conservatory systems Масштаб 1:5 Scale 1:5 Вертикальное сечение свеса и конька Vertical section through eaves and ridge point Характеристики и Features and benefits преимущества ● Attractive, elegant conservatory ● Изящная, легкая конструкция construction through 50 mm face зимнего сада с крышными width of roof profiles профилями с видимой шириной 50 мм ● Outstanding thermal insulation ● Низкие значения Uf стропил и through low Uf values of eaves карнизов обеспечивают and rafters превосходную теплоизоляцию ● Optimised system quality and ● Предварительная сборка security through high level of гарантирует оптимальное prefabrication качество и системную надежность ● Modular construction of roof ● Модульная конструкция profiles and eaves with minimal профилей крыши и желоба с number of individual небольшим количеством components деталей ● All usual conservatory types may ● Возможно изготовление be constructed зимних садов всех известных типов ● Flexible construction options ● Разнообразие конструкций through: обеспечивают: ● 2 eaves and rafter ● 2 варианта карнизов и combinations коньков ● 2 gutter types ● 2 типа желобов ● 2 construction heights ● 2 монтажных высоты (125 и 105 мм) профилей стропил, (125 and 105 mm) of rafter возможна установка profiles with multiple различных усилителей reinforcement options
  • 67.
    66 │ Schüco Огнестойкие и дымозащитные системы Fire and smoke protection systems
  • 68.
    Огнестойкие и дымозащитныесистемы Schüco │ 67 Fire and smoke protection systems Огнестойкие и дымозащитные системы Fire and smoke protection systems Schüco предлагает множество In the realm of security, Schüco конструкций, обеспечивающих aluminium systems for fire and комплексную безопасность smoke protection represent a здания, в т.ч. огнестойкие и comprehensive range of products дымозащитные алюминиевые for well-protected buildings. These системы. Актуальным systems have now been expanded дополнением стали системные to include system solutions for решения, обеспечивающие natural smoke and heat extraction естественный дымо- и systems tested in accordance with теплоотвод. European standards. Нормы и инструкции, Сертифицированное Сертифицированное регулирующие применение системное решение дымо- и системное решение дымо- и устройств дымо- и теплоотвода теплоотвода с теплоотвода с окном с жалюзи Standards and guidelines for верхнеподвесным окном Certified SHEVS system solution smoke and heat ventilation Certified SHEVS system solution with louvred window systems with projected top-hung window DIN EN 12101-2: действующая Верхнеподвесное Schüco Oкно Теплоизолированное норма для устройств AWS 102 для дымо- и тепло- алюминиевое окно с жалюзи – естественного дымо- и теплоотвода для вертикальных отвода. системное решение для фасадов и светопрозрачных устройств дымо- и теплоотвода крыш. Schüco Window AWS 102 as Schüco. projected top-hung window unit DIN EN 12101-2: the current for heat and smoke extraction Thermally insulated louvred standard for natural smoke and systems. window unit made of aluminium heat ventilation systems for vertical façades and skylights. as system solution with Schüco smoke and heat extraction systems. стр. 68 стр. 69 стр. 70 Page 68 Page 69 Page 70
  • 69.
    68 │ Schüco Огнестойкие и дымозащитные системы Fire and smoke protection systems Нормы и инструкции по применению устройств дымо- и теплоотвода Standards and guidelines for smoke and heat ventilation systems DIN EN 12101-2 DIN EN 12101-2 Устройства дымо- и теплоотвода For skylights fitted to roofs pitched для светопрозрачных крыш с at between 0° and 25°, smoke and углом наклона кровли от 0° до heat ventilation systems have so 25° до сих пор проверялись на far been tested to DIN 18232-3. соответствие норме DIN 18232-3. For vertical façades and for skylight К светопрозрачным крышам с constructions fitted to roofs pitched углом наклона кровли более 25°, а также к вертикальным фасадам at an angle greater than 25°, норма DIN 18232-3 непримени- DIN 18232-3 could not be applied. ма. Since September 2003, the test Стандарт DIN EN 12101-2 с criteria for NRWGs (Natural Smoke сентября 2003 года регулирует and Heat Extraction Devices) for критерии испытаний для уст- vertical façades and skylights ройств естественного дымо- и has been regulated by теплоотвода для вертикальных DIN EN 12101-2. (Coexistence фасадов и светопрозрачных phase with DIN 18232-3 ends on крыш. (Период одновременного 31 August 2006) действия с нормой DIN 18232-3 заканчивается 31.06.2006 г.). In both these areas, approved В обоих случаях необходимо system solutions consisting of использовать системные реше- window and motor must be used ния, включающие оконный блок и and it must be ensured that привод. При этом отдельные individual system components from системные компоненты, прохо- the tested system solution, such as дившие испытания в составе motor, vent bracket, consoles or VELTINS-Arena, Гайзенкирхен, Германия VELTINS-Arena, Gelsenkirchen, Germany единого целого, напр., привод, windows are not substituted. опора створки, кронштейн или окно, не могут быть заменены. As has already been the case for Нормы для изготовления и years with fire protection doors, for контроля устройств дымо- и NRWGs to be manufactured and теплоотвода требуют (этот метод monitored in line with the relevant зарекомендовал себя при standards, external and internal производстве огнестойких quality control is required and the дверей) внутреннего и внешнего units must also be CE marked. Маркировка CE контроля качества, а также CE marking наличия маркировки СЕ на элементах. Системные решения Schüco Schüco system solutions В качестве проверенных As tested system solutions, Schüco системных решений устройства smoke and fire protection systems дымо- и теплоотвода Schüco already meet this standard and соответствуют требованиям therefore offer architects, planners, данной нормы и таким образом fabricators and clients the best обеспечивают оптимальную possible solution in terms of надежность проектирования и security of planning and operation, производства, а также and also effective protection for Системные решения Schüco RWA прошли безопасность для людей и people and property. испытания в соответствии с европейской материальных ценностей. нормой DIN EN 12101-2 Schüco SHEVS system solutions have been tested in accordance with European standard DIN EN 12101-2
  • 70.
    Огнестойкие и дымозащитныесистемы Schüco │ 69 Fire and smoke protection systems Сертифицированная конструкция дымо- и теплоотвода с верхнеподвесным окном Certified SHEVS system solution with projected top-hung window Новый верхнеподвесной оконный блок Schüco Окно AWS 102 – еще одно проверенное системное решение для устройств дымо- и теплоотвода, встраиваемое в стандартные фасады Schüco FW 50+ и FW 60+. Верхнеподвесные окна в случае пожара быстро открываются с помощью надежных, прошедших многократные испытания цепных приводов Schüco. The new Schüco Window AWS 102 as projected top-hung unit represents an additional certified system solution for smoke and heat extraction systems – that can be used in Schüco FW 50+ and FW 60+ standard façades. The Schüco chain-driven motors are subjected to rigorous testing to ensure that projected top-hung window units open reliably and quickly in the event of an emergency. Schüco RWA (устройство дымо- и теплоотвода) с верхнеподвесным окном Schüco AWS 102 Schüco SHEVS with Schüco AWS 102 as projected top-hung window unit Характеристики и Features and benefits преимущества ● Schüco Window AWS 102 as ● Верхнеподвесное Schüco Окно projected top-hung window unit AWS 102 сертифицировано в tested to DIN EN 12101-2 соответствии с DIN EN 12101-2 ● Can be used in Schüco standard ● Установка в стандартные façades FW 50+ and FW 60+ фасады Schüco FW 50+ и ● Max. vent widths of FW 60+ 2700 mm x 1500 mm or ● Макс.размеры створок: 1600 mm x 2500 mm 2700 мм x 1500 мм или ● Max. vent weight 200 kg 1600 мм x 2500 мм ● An opening angle of up to 45° ● Макс. вес створки – 200 кг allows good aerodynamic and ● Створки окон открываются под ventilation values to be achieved углом до 45°, что гарантирует ● Projected top-hung window unit хорошие аэродинамические и can be available with stepped вентиляционные характерис- double glazing and glass тики retention profile or with standard ● В верхнеподвесное окно double glazing and glazing bead устанавливается либо ступенчатый стеклопакет и крепежный профиль, либо стандартный стеклопакет и штапик
  • 71.
    70 │ Schüco Огнестойкие и дымозащитные системы Fire and smoke protection systems Проверенное системное решение дымо- и теплоотвода с окном с жалюзи Certified SHEVS system solution with louvred window Окна с жалюзи с устройствами In the case of louvred window units дымо- и теплоотвода позволяют with Schüco smoke and heat открыть 80% площади окна для extraction systems, approximately вентиляции и отвода вредных 80% of the total window surface is газов. Расположение ламелей в available for ventilation and for центре створки позволяет extraction of noxious gases. The использовать их даже в створках position of the louvre units in the с открыванием внутрь. centre of the vent allows them to Теплоизолирвоанные be used without hindrance by алюминиевые элементы inward-opening window vents. The используются для изготовления thermally insulated aluminium units обычных окон и ленточного can be used for punched openings, остекления, а также могут ribbon windows or in standard устанавливаться в стандартных façades of up to 20 m installation фасадах на высоте до 20 м. height. Характеристики и преимущества ● Испытанное системное реше- ние – теплоизолированное алюминиевое окно с ламеля- ми, соотв. DIN EN 12101-2 ● Высота ламелей: 120 – 500 мм ● Звукоизоляция до 36 дБ достигается при монтажной глубине 50 мм и толщине стеклопакета 24 мм ● Коэффициент теплопередачи Uw = 2,3 Вт/м²K (DIN EN 10077-1) ● Поставка в виде готовых элементов фирмой EuroLam Features and benefits ● Thermally insulated louvred aluminium window unit tested as a system solution in accordance with DIN EN 12101-2 ● Choice of 120 mm or 500 mm louvre heights Системное решение дымо- и теплоотвода в окнах с жалюзи ● Noise reduction values of up to Schüco SHEVS system solution 36 dB can be achieved at a with louvred window unit basic depth of 50 mm and with 24 mm glass thickness ● Heat transition coefficient Uw = 2.3 W/m²K in accordance with DIN EN 10077-1 ● Ready-made units supplied by EuroLam
  • 72.
    Schüco стальные системыJansen Schüco │ 71 Schüco-Jansen steel systems Schüco стальные системы Jansen Schüco-Jansen steel systems Благодаря особенностям With its material benefits, steel материала при использовании offers new and interesting options стальных систем открываются for the structural requirements for интересные возможности fire protection and burglar-resistant создания большеразмерных, а constructions. также огнестойких и These unique benefits and options взломоустойчивых конструкций. are optimised in the system Эти уникальные преимущества и components of Schüco-Jansen возможности оптимальным steel systems. образом реализуются в системных компонентах стальных систем Schüco Jansen. Окна и двери Janisol Фасадные системы VISS Огнестойкие системы VISS Fire Janisol windows and doors VISS façade systems VISS Fire – fire protection systems Дополнительные типы Взломоустойчивые стальные Зарекомендовавшая себя на открывания окон Janisol и новые фасады класса WK2, а также практике стальная фасадная скрытые дверные петли новый крепеж для солнцезащит- система VISS Fire была сертифи- позволяют создавать ных устройств Schüco, расширя- цирована для использования в нестандартные инженерные и ют системный ассортимент фасадах, соответствующих дизайнерские решения. соответствующего требованиям требованиям нормы DIN 4120 с СЕ стандартного фасада. пределом огнестойкости 90 мин. Additional opening types for Janisol windows and new concealed door Burglar-resistant steel façades up VISS Fire is a proven fire hinges offer new structural and to WK2 and new fixings for simple protection façade system made design options. connection of Schüco solar from steel which has now gained shading solutions enhance the general building approval for range of systems of the CE façades with a fire resistance class approved standard façade. of 90 minutes in accordance with DIN 4102. стр. 72 стр. 73 стр. 74 Page 72 Page 73 Page 74
  • 73.
    72 │ Schüco Schüco стальные системы Jansen Schüco-Jansen steel systems Окна и двери Janisol Janisol windows and doors Верхнеподвесные и Janisol projected top hung and параллельно-отставные окна parallel opening windows Janisol SK- и PAF The thermally broken Janisol steel Система стальных профилей с profile system can now be used for терморазрывом Janisol использу- outward opening projected top ется для верхнеподвесных окон с hung and parallel opening открыванием наружу и windows. параллельно-отставных окон. Features and benefits Характеристики и ● Can be used in a standard преимущества VISS façade ● Установка в стандартных VISS ● Slender face widths with Верхнеподвесное окно с открыванием фасадах particularly narrow vent frames наружу ● Узкий профиль створки делает Outward opening projected top-hung window ● Manual or electric opening конструкцию особенно изящной ● Conforms to EnEV standards ● Ручное или автоматическое ● Excellent weathertightness открывание ● Outstanding performance ● Соотв.требованиям EnEv ● Outward opening projected ● Высокая изоляция top-hung window ● Обеспечивает достаточную вентиляцию Двери Janisol Janisol doors Роликовые петли из нержаве- The stainless steel barrel hinges or, ющей стали и новые скрытые if preferred, the new concealed дверные петли сделали дизайн hinges are designed for their стальных дверей еще более appearance and make the steel выразительным. and stainless steel door systems a more elegant shape. Характеристики и преимущества Features and benefits ● Элегантный внешний вид с ● Elegant door design with new новыми скрытыми петлями concealed hinges ● Новый фигурный штапик для ● New design glazing bead for реставрации renovation projects Система Schüco Fingerprint Schüco Fingerprint system ● Самые узкие профили шпрос с ● Narrowest of thermally insulated повышенной теплоизоляцией, sash bar profiles with a chamber размер камеры – 15 мм size of 15 mm ● Встроенная система Schüco ● Integrated access control using Fingerprint Schüco Fingerprint system ● HomeControl контролирует ● HomeControl for monitoring the положение створок и запираю- opening and closing of windows щих устройств окон и дверей and doors ● Все окна и двери из ● All stainless steel windows and нержавеющей стали могут doors available as burglar- поставляться в комплектации, resistant up to WK3 in соответствующей требованиям accordance with класса взломоустойчивости DIN V ENV 1627 WK3 (DIN V ENV 1627)
  • 74.
    Schüco стальные системыJansen Schüco │ 73 Schüco-Jansen steel systems Фасадные системы VISS VISS façade systems WK2 для фасадов VISS WK2 for VISS façades Дополнение к стандартной A system enhancement within the стоечно-ригельной конструкции standard range of mullion-transom позволяет теперь изготавливать constructions now provides the взломоустойчивые фасады option of burglar-resistant façades класса WK 2. up to WK2. Характеристики и Features and benefits преимущества ● Narrow sightlines with 50 mm or ● Изящные профили с видимой 60 mm profile face widths шириной 50 или 60 мм ● May be combined with VISS ● Совместимость со standard façades and VISS Fire стандартными фасадами VISS ● Can be used for Linea and Delta и VISS Fire design load-bearing profiles ● Возможность использования с ● Security tested to WK2 in несущими профилями Linea и accordance with Delta DIN V ENV 1627 ● Взломоустойчивость класса Масштаб 1:2 WK2 (DIN V ENV 1627) Scale 1:2 Крепления для Fixings for solar shading солнцезащитных систем systems Новые несущие анкеры служат New stainless steel anchor bolts for для удобного и быстрого quick and easy attachment of крепления систем Schüco Schüco SunControl systems. SunControl. Характеристики и преимущества ● Для стеклопакетов до 48 мм и профилей накладок до 25 мм ● Установка в фасадах VISS TV или VISS TVS ● Крепежные анкеры легко прикручиваются ● Перенос усилия до 75 кг на одну пару болтов Features and benefits ● Can be used for different glass thicknesses up to 48 mm and cover profiles up to 25 mm ● Can be used on VISS TV or VISS TVS façades ● Efficient fabrication as the Крепления для соединения Schüco anchor bolts can be screwed on SunContol с фасадом VISS easily Fixings for attaching Schüco SunControl to the VISS façades ● Transfer of forces of up to 75 kg per pair of bolts
  • 75.
    74 │ Schüco Schüco стальные системы Jansen Schüco-Jansen steel systems Огнестойкие системы VISS Fire VISS Fire – fire protection systems VISS Fire E30 / E60 К огнестойкости предъявляются Fire protection is a very sensitive высокие требования. Schüco area. Schüco Jansen steel systems была разработана система VISS have developed VISS Fire – a FIRE – универсальная, modular, fully insulated façade полностью изолированная construction for universal use. модульная фасадная ● Features and benefits конструкция. ● The narrowest of face widths of 50 mm for all Характеристики и преимущества ● Fire resistance classes ● Минимальная видимая ширина ● Feature load-bearing profiles as профилей – 50 мм – в конс- T-contour, elliptical or as special трукциях любого класса shapes (Personal Profiles) огнестойкости ● Very wide range of different VISS Fire E90 cover cap designs ● Несущие профили Т-образной, эллиптической или другой ● High degree of transparency специальной формы with large glass sizes up to ● Разнообразие накладок 3000 mm (F30) ● Стекло размером до 3000 мм ● Can be combined with all (EI30) позволяет создавать VISS standard façades максимально прозрачные ● One system for all fire resistance конструкции classes: G30/G60/G90 and F30 ● Совместимость с любыми and now also F90 in accordance стандартными VISS фасадами with DIN 4102 ● Система позволяет изготавли- ● Reliable planning thanks to вать конструкции любого modular design класса огнестойкости – E30 / ● Dry or wet glazing VISS Fire EI30 E60 / E90, EI30, а также нового ● Identical profiles and класса EI90, в соответствии с accessories identical to those in DIN 4102 VISS standard façades ● Модульный принцип гаранти- ● G30 curtain walls and skylights рует надежность approved with tested ● Остекление с использованием connections between vertical уплотнителей и герметиков and sloping façades ● Профили и комплектующие ● Janisol 2 T30 doors can be идентичны используемым в incorporated стандартных VISS фасадах ● Safety bars in accordance with ● Навесные фасады E30 и TRAV VISS Fire EI90 светопрозрачные крыши ● CE approved fire protection используют сертифицирован- façades ные соединения между вертикальными или наклонны- ми фасадами ● Возможность установки дверей Janisol 2 T30 ● Безопасность остекления согласно TRAV ● Сертификат СЕ по огнестой- ким фасадам Масштаб 1:2 Scale 1:2
  • 76.
    Солнцезащитные системы Schüco │ 75 Solar shading systems Солнцезащитные системы Solar shading systems Являясь важным As one of the most important функциональным элементом aspects of the building envelope, ограждающих конструкций, solar shading systems prevent солнцезащитные системы rooms from overheating in summer предотвращают перегрев and offer the option of intelligent помещений в летнее время, а daylight management. также позволяют более эффективно использовать естественное освещение. Schüco Наружные жалюзи Подвижные солнцезащитные BEB 80 EC системы Schüco SunControl Schüco External Blinds Schüco SunControl – active BEB 80 EC solar shading Оптимальная защита от солнца и Регуляция светового потока или элегантный дизайн без нарушаю- затенение – система с щих целостность облика фасада подвижными широкими направляющих лент в центре ламелями Schüco SunControl ламелей. Все ленты проходят по позволяет выбрать угол наклона краям ламелей. ламелей. Optimised solar shading and an Whether for daylight management elegant design without obtrusive or shading, the Schüco SunControl uide tapes through the middle of large louvre active blade system the blades, even on wider designs. offers a high level of convenience apes are mounted on the edge of with infinitely variable blade the blades. angling. стр. 76 стр. 78 Page 76 Page 78
  • 77.
    76 │ Schüco Солнцезащитные системы Solar shading systems Schüco Наружные жалюзи BEB 80 EC Schüco External Blinds BEB 80 EC Новые наружные жалюзи Schüco BEB 80 EC демонстри- руют усовершенствованную во многих отношениях конструкцию: тросовые, ленточные направляющие и кордшнуры размещаются только у внешнего края ламелей. Более сильный изгиб ламелей и крепление ламелей на направляющих не в центральной точке позволяют оптимизировать угол наклона. Особенно компактны ламели в сложенном виде в случае, если у изогнутых ламелей плоская нижняя планка и практически плоские проушины. Новый зажимной монтажный кронштейн гарантирует быстрый монтаж даже в случае затрудненного доступа. The new Schüco External Blinds BEB 80 EC provide inspiring system optimisation. All guide cords, fabric tape and ladder cords Schüco Наружные жалюзи BEB 80 EC are located at the extreme edges of The new Schüco External Blinds BEB 80 EC the blades. The larger curvature and off-centre fixing of the blades to the ladder cords ensures an optimum closing angle. The combination of blade curvature, a flush bottom rail and very flat eyelets results in extremely small stack heights. And the new clip-on mounting beam ensures fast installation, even in locations with restricted access. Тросовые направляющие и направляющие ламелей Cord and blade guides
  • 78.
    Солнцезащитные системы Schüco │ 77 Solar shading systems Толщина сложенных ламелей Длина полотна Height of blinds Stack height Мин.толщина сложенных ламелей Масштаб 1:2 Minimal stack height Scale 1:2 Характеристики и Features and benefits преимущества ● Cord guide, fabric tapes and ● Тросовые, ленточные ladder cords all together at the направляющие и кордшнуры edge of the blades: elegant размещаются у внешнего края appearance plus improved solar ламелей. Элегантный дизайн в shading and anti-glare protection сочетании с улучшенной ● The larger curvature of the антибликовой и blades and off-centre fixing of солнцезащитой the blades to the ladder cords ● Более сильный изгиб ламелей ensures an optimum closing и крепление ламелей на angle направляющих не в ● Minimal stack height both with центральной точке позволяют and without eyelets оптимизировать угол наклона ● Clip-on mounting beam for fast ● Мин.толщина сложенных installation ламелей как при наличии, так и при отсутствии проушин ● Flush bottom rail ● Монтажный кронштейн на ● Integral springs for controlled зажимах ускоряет установку rigging ● Плоская нижняя планка ● Встроенная пружинная пара позволяет регулировать натяжение троса
  • 79.
    78 │ Schüco Солнцезащитные системы Solar shading systems Подвижные солнцезащитные системы Schüco SunControl Schüco SunControl – active solar shading Новая концепция статических The new structural mullion design стоек для подвижных солнцеза- for Schüco SunControl active solar щитных устройств Schüco shading features three new single- SunControl включает в себя три component mullion profiles. The новых профиля стоек. При этом structural mullions are used as статические стойки используются load-bearing constructions with в качестве несущей конструкции linear drives. с линейным приводным механиз- мом. Features and benefits ● These three new structural Характеристики и mullions mean that many преимущества different applications can be ● Три новые статические стойки implemented, even with the Цельная статическая стойка с позволяют использовать стой- smallest of mullion profiles and улучшенными статическими ки мин.размера при незначи- minimum use of materials характеристиками тельном расходе материала ● Reduced weight structural One-piece structural mullion with improved structural values ● Облегченные статические mullions with improved structural стойки с улучшенными стати- values ческими характеристиками ● Insert profiles are no longer ● Отпадает необходимость required использования вставных ● One-piece structural mullions профилей make fabrication of the load- ● Использование цельных bearing structure significantly статических стоек значительно easier упрощает изготовление несущей конструкции Цельная статическая стойка One-piece structural mullion Масштаб 1:5 Scale 1:5
  • 80.
    О компании Schüco │ 79 The company Schüco – эксперт по оболочке здания Schüco – The building envelope specialist Системы из алюминия Aluminium systems Системы из стали Steel systems Системы из ПВХ PVC-U systems Готовые элементы Standard units Солнечные батареи Solar products Schüco Design Schüco Design Schüco International KG – это ведущая компания на Schüco International KG is the European leader in европейском рынке по продаже систем из system-based construction with aluminium, steel, алюминия, стали, ПВХ, а также солнечных батарей. PVC-U and solar products. As leading innovator in this Являясь лидером в разработке передовых field, Schüco supplies the components for the whole технологий, Schüсo поставляет компоненты для building envelope, including special software solutions всей оболочки здания, а также специализированное for planning, construction, calculation and fabrication. программное обеспечение для проектирования, A truly global company, Schüco co-operates with конструирования, расчетов и производства. Как architects, investors and fabricators in almost every предприятие, работающее на глобальном рынке, country in the world. With its well-honed model of Schüco сотрудничает с архитекторами, system partnership, Schüco stands out on the world инвесторами и производителями практически во stage, not only on account of its technological всех странах мира. Благодаря продуманной схеме expertise, but as a company dedicated to the success системного партнерства фирма Schüco of its partners. зарекомендовала себя во всем мире не только как эксперт в области передовых технологий, но и как предприятие, нацеленное на успех всех своих партнеров.
  • 81.
    80 │ Schüco О компании The company Системы из Системы из стали Системы из ПВХ алюминия Steel systems PVC-U systems Aluminium systems Многофункциональной оболочке Совместно с Jansen AG Schüco Schüco предлагает здания принадлежит будущее: предлагает на рынках некоторых высококачественные системы практичные профили из стран решения для фасадов, профилей из ПВХ, отличающиеся алюминия являются надежной, ворот и дверей для богатым ассортиментом и обеспечивающей свободу высококачественных стальных разнообразным дизайном. творческих решений основой для труб и стальных профилей. Надежность продукции и ее разработки комплексных Таким образом Schüco открывает привлекательный внешний вид, решений для фасадов, новые направления в системных многообразие цветовой палитры светопрозрачных крыш, окон, технологиях: широкие и удобство обслуживания дверей, систем солнцезащиты, архитектурные возможности, являются лишь некоторыми из зимних садов, балконов, технологические решения, многих преимуществ систем из ограждений, а также защитных удовлетворяющие практически ПВХ фирмы Schüco. конструкций и конструкций любым требованиям и повышенной безопасности. эффективные методы обработки Schüco offers you high quality Передовые технологии идеально дополняют друг друга. PVC-U system technology which is управления окнами и фасадами distinguished by its broad range of Schüco позволяют объединить In partnership with Jansen AG, products and comprehensive отдельные системы здания в Schüco offers solutions for design options. Product reliability, единое целое. façade and door technology from attractive designs, a range of high quality steel tubes and steel colours and the comfort of easy The future belongs to the profile systems both in Germany, operation are only some of the multi-functional building and in other selected countries. advantages of Schüco PVC-U envelope: aluminium profiles In this way, Schüco is opening a systems. are the secure and creative new dimension in system basis for comprehensive expertise: architectural freedom, solutions for façades, skylights, technological solutions for almost windows, doors, solar shading, all requirements and efficient conservatories, balconies, fabrication are ideally balustrades, and protection and complemented. security constructions. Pioneering window and building management technology from Schüco brings individual building systems together into a single unit.
  • 82.
    О компании Schüco │ 81 The company Готовые элементы Солнечные Schüco Design Standard units батареи Schüco Design Готовые элементы Schüco из Многофункциональная систем- Подразделение Schüco Design – ПВХ и алюминия могут исполь- ная технология фирмы Schüco специалист по системным зоваться в любых новостройках по преобразованию солнечной технологиям для алюминия, или при реконструкции зданий. энергии в тепловую и электро- предлагает различные возмож- Schüco предлагает идеальные энергию предусматривает ности оформления, начиная с решения для индивидуального отличную совместимость всех разработки и заканчивая строительства, включая зимние компонентов. Schüco – ведущий производством, включая обра- сады, окна, двери, или солнеч- поставщик фотогальванических ботку и отделку поверхностей. ные батареи – системные и водонагревающих устройств Для машиностроения, промыш- технологии обеспечивают на солнечных батареях гаранти- ленной и рекламной сферы, а полную совместимость элемен- рует единую схему сборки, что также мебельной промышлен- тов. делает эти технологии более ности Schüco Design разработа- энергосберегающими. ло комплексные решения, Ready-made units made by Schüco впечатляющие своей функцио- from PVC-U and aluminium are Within the multifunctionality of нальностью, экономичностью и available for all your new build or Schüco’s solar energy technology, гибкостью. renovation needs. Schüco has the all the components for solar ideal solution for individual building heating and electricity production As a specialist in aluminium ideas, be it conservatories, are perfectly integrated. As the system technology, Schüco windows, doors or solar products – leading supplier of photovoltaic Design offers a broad spectrum of system technology means all the and solar heating units, Schüco design options, from development units are fully compatible. guarantees a uniform system of to production, including surface assembly and thereby also finishing. For engineering, particularly efficient technology. industrial technology, advertising and the furniture industry, Schüco Design manufactures comprehensive product solutions which are functional, economical and flexible.
  • 83.
    82 │ Schüco О компании The company Компетентность Expertise Новые контакты – надежное New contacts – tried and tested консультирование advice ● Мы консультируем и оказываем поддержку: ● We provide consultancy and support for: ● заказчикам ● Clients ● архитекторам ● Architects ● административным органам ● Local authorities ● генеральным подрядчикам ● General contractors ● предприятиям жилищного строительства ● Housing associations ● Мы находим решения для новых объектов ● We find solutions for new projects ● Мы помогаем составить перечень работ и услуг ● We help to create the bill of quantities ● Мы консультируем при составлении ● We offer advice on translating your bill of предложения на основе перечня работ и услуг quantities into a tender Большие планы – несложное Big ideas – straightforward проектирование planning ● Мы оказываем поддержку при ● We offer support with: ● проведении тендеров ● Specifications ● выполнении примыканий к зданиям ● Attachments to building structure ● учете строительно-физических требований ● Consideration of physical requirements ● выборе желаемого оформления зданий ● Design requirements ● выполнении предв.статических расчетов ● Preliminary structural analysis ● выбор системы ● Choice of system ● разработке конструкционных предложений ● Design proposals
  • 84.
    О компании Schüco │ 83 The company Контакты Contact Проектировщики и региональные Architectural Projects Management and менеджеры по продажам: услуги, Area Sales: предоставляемые Schüco Services provided by Schüco ● Мы оказываем Вам услуги бесплатно ● Our service is provided free of charge ● Мы помогаем претворить Ваши идеи в жизнь ● We help to bring your ideas to life ● Вы экономите время и деньги ● You save time and money ● Ваше производство становится эффективнее ● You can work more profitably ● Вы добиваетесь большего успеха ● You will become more successful Schüco International KG Schüco International KG Karolinenstraße 1-15 • Karolinenstraße 1-15 • D-33609 Bielefeld D-33609 Bielefeld Телефон +49 521 783-0 Telephone +49 521 783-0 Телефaкс +49 521 783-9260 Fax No +49 521 783-9260 www.schueco.com www.schueco.com Выпуск № 281 764 / Издание: янвapь 2007 Manual No.: 281 764 / Edition: January 2007 Перепечатка, в том числе частичная, возможна только с нашего Reproduction, even in part, is not permitted, except with our approval. согласия. Мы оставляем за собой право вносить изменения в We reserve the right to introduce modifications in the interest of интересах технического прогресса. Все наши системы и technical progress. техническая продукция разрабатывались с учетом немецких и All our systems and technical products have been developed with due европейских норм, директив и рекомендаций. Поэтому в отдельных regard to the rules and conditions of DIN (Deutsches Institut für случаях могут возникать отклонения от национальных норм, Normung e.V.). Consequently, deviations from other standards директив и рекомендаций. Нашим заказчикам следует сравнивать may sometimes arise. Customers should therefore make their own наши рекомендации с требованиями действующих в их стране comparison with appropriate standards in their own country. норм. Действуют наши актуальные Общие условия продажи и Our general sales and delivery conditions apply. Ordering instructions поставки – документация по оформлению заказа не используется are not intended for use as fabrication instructions. как производственная документация.
  • 85.
    Новая маркировка продукции Newproduct designations В Инновациях 2007 приведена With its Innovations 2007, Schüco новая маркировка продукции is introducing new product Schüco. designations. Главное из нововведений - The foundations are abbreviations обозначение группы продуктов consisting of three letters which сокращением из трех букв. За describe the particular product ними, как и раньше, следует group. As before, they are followed техническое цифровое by a technical figure (e.g. basic обозначение (напр., монтажная depth or face width), and by other глубина или видимая ширина), а specifications relating to shape or также описание особенностей function. продукта - его конфигурации или Schüco Окно AWS 75 BS.HI функций. Example: Schüco Window AWS 75 BS.HI Schüco Window AWS 75 BS.HI Пример: AWS = Aluminium Window System Schüco Окно AWS 75 BS.HI BS = Block System (block window) AWS = Aluminium Window System HI = High insulation (high thermal (алюминиевая оконная система) insulation) BS = Block System (блочное окно) HI = High insulation (повышенная The list below gives an overview of теплоизоляция) the first new names, as they are introduced in the innovations В приведенном ниже списке featured in this Architect названы первые новые Information brochure. обозначения систем, впервые описанных в данном выпуске информации для архитекторов. Группа Наименование Расшифровка Product group Designations Explanation AWS Aluminium Window System Оконная система из алюминия / Aluminium window system ASS Aluminium Sliding System Раздвижная система из алюминия / Aluminium sliding system SFC Stick Frame Construction Стоечно-ригельный фасад со встроенными рамами / Mullion-transom façade with insert frame SMC Stick Modular Construction Модульный стоечно-ригельный фасад / Mullion-transom façade using modular construction methods COC Conservatory Construction Система для модульных зимних садов/ Conservatory system using modular construction methods BEB Basic External Blinds Наружные жалюзи с плоскими ламелями / Flat blade external blinds Спец. обозн. Specification Конструкция с максимальной теплоизоляцией / Construction with the highest level of thermal .SI Super Insulation insulation .HI High Insulation Конструкция с повышенной теплоизоляцией / Construction with high thermal insulation BS Block System Блочные профили / Block-shaped profiles ST Steel contour Узкие профили, имитирующие стальные / Profiles with a narrow steel contour RL Residential Line Профили со скошенными с внешней стороны контурами / Profiles with bevelled external contour SL SoftLine Профили со скругленными с внешней стороны контурами / Profiles with rounded external contour WF Window Façade Профили для фасадов с окнами / Profiles for use as window façaces SG Structural Glazing Конструкции со структурным остеклением / Construction with the appearance of continuous glazing EC Electronic Cable Электропривод с направляющей кабеля / Electrically driven using wire cable guide
  • 86.
    Запрос по объектам Projektorder Отправитьбланк запроса по факсу Schüco Факс: +49 521 783-9260 Fax project order to Schüco Fax No.: +49 521 783-9260 Я хотел бы получить информацию, касающуюся следующих тем. Прошу выслать мне сведения о: I would like to receive information on the following topics. Please send me more information: Мне необходима техническая консультация по следующему объекту: I would like a technical consultation on the following project: Прошу связаться со мной. Please get in touch with me. Номер клиента Customer number Фирма Company Фамилия Name Улица Address Индекс /город Town / Postcode Телефон / Фaкс. Telephone / Fax No. E-mail E-Mail Schüco International KG Schüco International KG Karolinenstraße 1-15 • Karolinenstraße 1-15 • D-33609 Bielefeld D-33609 Bielefeld Телефон +49 521 783-0 Telephone +49 521 783-0 Телефaкс +49 521 783-9260 Fax No. +49 521 783-9260 www.schueco.com www.schueco.com