0 | P a g e
TENDER NO. UP14C13001
TENDER DOCUMENT
(Techno-commercial Bid)
For the job of
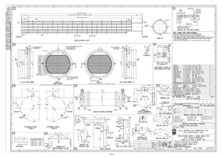
“Re-tubing of heat exchangers E-112D, E-512B and E-2503 A/B of LPG 1, 2 & CFU
Plant at Uran”.
1 | P a g e
NO: MR /URAN/28/C/CC/ 59P/2012-13/UP14C13001 Date:--
INVITATION TO BID
To,
_______________________________________
_______________________________________
______________________________________
Dear Sirs/Madam,
Sealed tenders in two-bid system are invited for the “Re-tubing of heat exchangers E-112D,
E-512B and E-2503 A/B of LPG 1, 2 & CFU Plant at Uran” in the prescribed Bid Forms. The
tender document consists of total 142 pages including this letter. Tenders should be
submitted in two bid system comprising of:-
Techno-commercial bid: - Tender documents along with all its enclosures as mentioned in
the Bid Evaluation Criteria and correspondence if any, in one envelope super scribing
“Techno-commercial bid” and duly sealed. Any deviation or exception, if any, should be
submitted with this bid only.
Price bid: - The rate shall be filled only in the schedule given in this tender document. Duly
filled in documents should be placed in separate envelope super scribing “Price Bid” and
duly sealed. No other document or terms and conditions should be put in the price bid. Both
the envelopes containing techno-commercial bid and price bid should be put together in
one envelope duly sealed and be superscribed with the subject of the tender.
ONGC reserves its right to reject any or all tenders without assigning any reason
whatsoever.
With regards,
Yours sincerely
CE(P), CCell.
For DGM (P) I/C-CONTRACT CELL
2 | P a g e
TENDER NOTICE
Name of the Work “Re-tubing of heat exchangers E-112D, E-512B and E-2503
A/B of LPG 1, 2 & CFU Plant at Uran”.
UP14C13001
Contract Cell,Contract-Cell Dronagiri Bhavan,Uran
Plant, Uran 400 702
Tender
Section
Type of Tender Indigenous Open Tender in Two Bid System.
Notification date 05.04.2013
Cost of the
Tender Document
(IN INR)
Rs.500/- (Rupees Five hundreds only) in the form of crossed
Demand drawn in favour of GM (F&A), ONGC, Uran Plant,
Uran Payable at Mumbai.
Period of sale of tender 05.04.2013: 1000 Hrs to 25.04.2013: 1600 Hrs.
Date of Closing 06.05.2013 at 1600 Hrs.
Date of Opening of Tender 06.05.2013 at 1700 Hrs (if possible)
Earnest Money Deposit Rs 1,46,650/- (Rupees One Lac Forty Six Thousand Six
Hundred Fifty Only) in the form of Crossed Demand drawn
in favour of DGM(F&A),ONGC, Uran Plant,Uran payable at
Mumbai Only and issued by any Nationalized / scheduled
Commercial Bank.
Essential Qualification Criteria The bidders must fulfill the Essential qualification Criteria as
specified in the NIT and all necessary documents shall be
submitted at the time of submission of tender:.
Experience:-
The bidder must have executed the job of fabrication of heat
exchanger/re-tubing of exchanger in any Hydrocarbon
industries/ Petrochemical / /Refineries /Fertilizers
Plant/Power Plant/Industrial Unit/Public or Private Sector
Organization Unit during last 7 years from the date of
opening of the bid, should be either of the following:-
(a) Three similar completed works each costing not less
than the amount equal to Rs.29,32,504/- (Rupees
Twenty Nine Lac Thirty Two Thousand Five Hundred
Four Only)
(b) Two similar completed works each costing not less than
the amount equal to Rs. 36,65,630/- (Rupees Thirty Six
Lac Sixty Five Thousand Six Hundred Thirty only)
(c) One similar completed work costing not less than the
amount equal to Rs. 58,65,008/- (Rupees Fifty Eight lac
OIL AND NATURAL GAS CORPORATION LTD.
MUMBAI REGION, Uran Plant, Uran
Dist.-Raigad– 400702 (Maharashtra)
3 | P a g e
Sixty Five Thousand Eight Only)
The bidder shall submit notarized copies of work order
copies containing detailed scope of work and also notarized
copies of documentary evidence of completion of the job
corresponding to above work orders such as (i) Satisfactory
Completion/ Performance Report (or) (ii) Proof of Release of
Performance Security after completion of the Contract (Or)
(iii) Proof of Settlement/ Release of Final Payment Against
the Contract (Or) (iv) Any other documentary evidence that
can substantiate the satisfactory execution of the contract in
support of above along with techno-commercial bid.
Bidders not qualifying the above mentioned eligibility
qualifications and experience will be rejected.
(B) The bidder should have Registration of their
establishment firms either under shops and Establishment
Acts or under Companies Act/Directorate of Industries OR
Indian Partnership Act’32. OR Factories Act ’48
Conditions 1. No deviations / exceptions to the bid conditions shall be
acceptable.
2. ONGC reserves it’s right to issue or not to issue the tender
document to any purchaser. Issuing of tender shall not be
presumed to be qualified for opening of Price bid.
3. No cognizance will be taken for postal delays.
4. The tenders have to be submitted by the due date and
time as per NIT.
5. ONGC further reserves its right to reject any or all tenders
without assigning any reason whatsoever.
6. Bidders will have the option of purchasing tender
documents from the selling centers’ as per prevailing
practice (or) downloading the tender documents and use
the same for participating in the tender. But the bidders
downloading the document from the website should
ensure to submit tender fee so as to reach the tender
inviting work centre before the deadline specified for
tender sale along with confirmation on major qualifying
criteria (MQC) / pre-qualification criteria (PQC) which will
be acknowledged by ONGC by issuing Request for
Quotation (RFQ) number specific to the tender and bidder
through Fax/e-mail. The intending Bidder must be
registered with ONGC (having vender code No). The
bidders who are not registered with ONGC i.e. not having
Vender Code number are requested to get registered
4 | P a g e
themselves to obtain vender code well in advance prior to
closing date of tender selling. Request for Quotation (RFQ)
number specific to the bidder and tender cannot be
generated if the bidder is not having a valid Vendor Code
with ONGC.
7. If tender fee and confirmation of PQC conditions in
undertaking are not received before the deadline specified
for tender sale, the request of bidder to participate in
tender be will be summarily rejected. (ONGC shall not be
responsible for any postal delay).
8. The successful bidder has to give an undertaking that they
will provide all the necessary certificates / documents for
enabling ONGC to avail in put VAT Credit and CENVAT
credit benefits (wherever applicable), in respect of the
payments of VAT, Excise Duty, Service Tax etc which are
payable against the contract (if awarded) along with
documentary evidence for payment of excise duty and
service tax as applicable under the law.
9. For any clarification please log on to our website
“tenders.ongc.co.in”
Tender issuing and receiving
Office address
Tender
issuing/receiving/leave
reserve office address
K.A.KATYARI CE (P),Contact Cell , 111, Dronagiri Bhavan,
ONGC Ltd., Uran Plant, Uran-400702, District : Raigad
V.K.GUPTA CE (E), Contact Cell , 111, Dronagiri Bhavan,
ONGC Ltd., Uran Plant, Uran-400702, District : Raigad
Tender submission address Tender box kept at the Office of DGM (P),I/C Contact Cell ,
Room No.116, Dronagiri Bhavan, ONGC, Uran Plant, /Chief
Engineer (P), Room No.111, Dronagiri Bhavan, Uran-400702,
Distt.- Raigad.
5 | P a g e
INDEX
ANNEXURE – I
INSTRUCTION TO BIDDERS
S.No. Clause P. No.
1. Eligibility of the Bidder 09
2. Tender Fee 09
3. Transfer of Bidding Document 09
4. Cost of Bidding 09
5. Content of Bidding Document 10
6. Amendment to Bidding Documents 11
7. Language and Singing of Bid 11
8. Clarification in respect of incomplete Offers 12
9. Documents comprising the Bid 12
10. Price Schedule 13
11. Price Bid 14
12. Income Tax Liability 14
13. Vague and Indefinite Expressions 15
14. Period of Validity of Bids 15
15. Bid Security 16
16. Telex/ Telegraphic/ Telex/ Xerox/ Photo Copy Bids 17
17. Sealing and marking of Bids 17
18. Deadline for submission of Bids 18
19. Late Bids 18
20. Modification and Withdrawal of Bids 18
21. Opening of Bids 18
22. Evaluation and Comparison of Bids 19
23. Unsolicited Post tender Modification 19
24. Examination of Bids 20
25. Specifications 20
26. Contacting the ONGC 20
27. Award Criteria 20
28. ONGC’s Right to Accept any Bid and to reject any or all Bids 20
29. Notification of Award 20
30. Mobilization Period 21
31. Signing of Contract 21
32. Performance Security 21
33. Correspondence 21
34. Representation from the Bidder 22
Appendix – 1 Bidding Document Acknowledgment Proforma 23
6 | P a g e
Appendix – 2 Bid Submission Proforma 24
Appendix – 3 Agreement 25
Appendix – 4 Proforma of Bank Guarantee towards Bid Security 27-29
Appendix – 5 Check List 30-31
Appendix – 6 Bidders Past Services (Similar) Proforma 30
Appendix – 7 Authorization Letter for Attending Tender Opening 31
Appendix - 8 Proforma Certificate on Relatives of Directors of ONGC 32
Appendix – 9 Proforma for declaration & undertaking by bidder 33
Appendix – 10 Proforma for Health, Safety & Environment 34
Appendix –11 Proforma for EPF norms Compliance 44
Appendix – 12 Proforma for payment through electronic
mechanism
53
Appendix- 12A&B Proforma for parant company guarantee 54-56
7 | P a g e
ANNEXURE – II
GENERAL CONTRACT CONDITIONS
S.No. Clause P. No.
1. Definitions 57
2. Scope of Work/ Contract 61
3. Duration of the Contract 61
4. Notices and Addresses 61
5. Duties and Power/ Authority 62
6. Contract Document 64
7. Remuneration and Terms of Payment 66
8. Claims/ Taxes & Duties, fees and Accounting 66
9. Performance 65
10. Performance Bond 66
11. Security Deposit 66
12. Forfeiture of SD/ Bank Guarantee 66
13. Time Period of the Contract 67
14. Period of Liability 67
15. Discipline 67
16. Safety and Labour Laws 67
17. Secrecy 67
18. Statutory Requirement 72
19. Insurance 72
20. Indemnity Agreement 78
21. Termination 79
22. Severability 79
23. Consequential Damages 79
24. Liquidated Damages (LD) 81
25. Change in Laws 82
26. Liability of the Government of India 83
27. Force Majeure 84
28. Employment by Firms to Officials of ONGC 84
29. Preference to Local Companies 84
30. Jurisdiction and Applicable Law 84
31. Arbitration 85
32. Labour Laws Arbitration & other Legal matters 80
33. Observance of Labour Laws 86
34. Payment of Wages to Labours 87
35. Govt. Directives on Employment of Labour 91
36. Continuance of the Contract 91
37. Interpretation 91
38. Entire Agreement 91
8 | P a g e
39. Site Pollution Responsibility 92
40. General Obligations 92
41. Safety & Security Code for ONGC 96
42. Issue/ Return of Photo Gate Passes 98
43.
Appendix – 1 Proforma of Bank Guarantee towards Performance
Security
108-
111
44. BEC & BEC Matrix 112-137
45. Scope of Work 138-154
46. Schedule of Rates 155-158
47. Price bid format 159-164
9 | P a g e
ANNEXURE- I
INSTRUCTIONS TO BIDDERS
A. INTRODUCTION
1.0 ELIGIBILITY AND EXPERIENCE OF THE BIDDER:-
1.1(a) The bidder should have EPF account and must submit the copy of EPF allotment
letter as a proof of having EPF account and latest remittance made to the office of
regional Provident Fund Commissioner. In case the bidder is not having EPF Code
number at the time of submission of Bid, an undertaking should be furnished by the
Bidder that he will obtain a EPF Code number from the Regional Provident Fund
Commissioner and submit the notarized copy of EPF allotment letter issued in the
firm’s name by Regional Provident Fund Commissioner and latest Challan for
monthly remittances of EPF contributions of contract employees engaged by him to
Regional Provident Fund authorities along with first Invoice submitted for payment
against the work order.
1.1 (b) The bidder must submit copy of registration certificate either under Shops &
Establishment Act or Under Company’s Act.
1.1 (C) The bidder must have executed the job of fabrication of heat exchanger/re-tubing of
exchanger in any Hydrocarbon industries/ Petrochemical / /Refineries /Fertilizers
Plant/Power Plant/Industrial Unit/Public or Private Sector Organization Unit during
last 7 years from the date of opening of the bid, should be either of the following:-
 Three similar completed works each costing not less than the amount
equal to Rs.29,32,504/- (Rupees Twenty Nine Lac Thirty Two Thousand
Five Hundred Four Only)
 Two similar completed works each costing not less than the amount equal
to Rs. 36,65,630/- (Rupees Thirty Six Lac Sixty Five Thousand Six Hundred
Thirty only)
 One similar completed work costing not less than the amount equal to Rs.
58,65,008/- (Rupees Fifty Eight lac Sixty Five Thousand Eight Only)
1.2 Details of experience and past performance of the bidder on works/ jobs done of
similar nature in the past and details of current work in hand and other contractual
commitments, indicating areas and clients are to be submitted along with the
techno-commercial bid.
2.0 TENDER FEE
2.1 The offer will not be considered without tender fee. The Government Departments
are exempted from payment of tender fee.
10 | P a g e
2.2 Refund of tender fee
In the event a particular tender is cancelled, the tender fee will be refunded to the
concerned Bidder.
3.0 TRANSFER OF BIDDING DOCUMENT
The Bidding document is not transferable.
4.0 COST OF BIDDING
The Bidder shall bear all costs associated with the preparation and submission of its
bid, and the ONGC will in no case be responsible or liable for those costs, regardless
of the conduct or outcome of the bidding process.
B. THE BIDDING DOCUMENT
5.0 CONTENT OF BIDDING DOCUMENTS
5.1 The services required, bidding procedures and contract terms are described in the
bidding document. In addition to the Invitation for Bids, the bidding documents
include:
ANNEXURE- I: = Instructions to Bidders with following Appendices
Appendix 1 = Bidding Document Acknowledgement Proforma
Appendix 2 = Bid submission Proforma
Appendix 3 = Bid submission Agreement Proforma.
Appendix 4 = Bid Bond Bank Guarantee Proforma
Appendix 5 = Checklist
Appendix 6 = Proforma for Bidders past services (similar)
Appendix 7 = Proforma of Authorization Letter for attending Tender
Opening
Appendix 8 = Proforma of Certificate on Relatives of Directors
Appendix 9 = Proforma of Declaration & undertaking by Bidders
Appendix 10 = Health, Safety & Environment (Hse) Management During
Contracts
Appendix 11
Appendix 11A
= Compliance by the contractor of EPF
norms/regulations as per statutory requirement.
Format For Regret Letter To Be Submitted On The
Letter Head Of The Bidder
Appendix 12
Appendix 12A&B
= Proforma for payment by electronic payment
mechanism
Proforma for agreement between bidder and parent
company and for parent company guarantee
ANNEXURE- II = General Conditions of Contract (GCC) with following
appendices.
11 | P a g e
Appendix 1 = Proforma of Performance Bond Bank Guarantee.
ANNEXURE- III = Bid Evaluation Criteria & BEC Matrix.
ANNEXURE-IV
ANNEXURE –V
= Scope of work, Technical Specifications
Schedule of Rates
5.2 The bidders are expected to examine all instructions, forms, terms and specifications
in the bidding documents. Failure to furnish all information required by the bidding
documents will be at the bidder’s risk. Tenders not complying with tender conditions
and not conforming to tender specifications will result in the rejection of its bid
without seeking any clarifications. Also, bidders are expected to visit the site for
assessment of quantum of jobs before submission of their offers preferably on the
day of Pre-bid conference.
6.0 AMENDMENT TO BIDDING DOCUMENTS
6.1 No change in specifications and tender conditions will be permissible after bid
opening.
6.2 At any time prior to the deadline for submission of bids, the ONGC may, for any
reason, whether at its own initiative or in response to
6.3 All prospective Bidders who have received the bidding documents will be notified of
the amendments in writing.
6.4 In order to allow prospective Bidders reasonable time in which to take the
amendments in to account in preparing their bids, the ONGC may, at its discretion,
extend the deadline for the submission of bids.
C. PREPARATION OF BIDS
7.0 LANGUAGE AND SIGNING OF BID
7.1 The bid prepared by the bidder and all correspondence and documents relating to
the bid exchanged by the Bidder and the ONGC shall be written in English language.
Supporting documents and printed literature furnished by the Bidder may be in
another language provided they are accompanied by an accurate translation of the
relevant passages in English, in which case, for purposes of interpretation of the bid,
the translation shall prevail.
7.2 Bids shall be submitted in the prescribed bid Proforma as per appendices 1 to 12 of
Annexure-I. The prescribed Proforma at Appendices of Annexure I, duly filled in and
signed should be returned intact whether quoting for any item or not. When items
are not being tendered for, the corresponding space should be defaced by some
such words as "Not Quoting".
12 | P a g e
7.3 In the event of the space on the bid Proforma being insufficient for the required
purpose, additional pages may be added. Each such additional page must be
numbered consecutively, showing the tender number and should be duly signed. In
such cases reference to the additional page(s) must be made in the bid. Bidders are
requested to note that they have to number all the pages serially of their offers
without fail.
7.4 The bid Proforma referred to above, if not returned or if returned but not duly filled
in will be liable to result in rejection of the bid.
7.5 The Bidders are advised in their own interest to ensure that all the points brought
out in the check list & BEC Matrix are complied with in their bid failing which the
offer is liable to be rejected.
7.6 The bids can only be submitted in the name of the Bidder in whose name the bid
documents were issued by ONGC. The bid papers, duly filled in and complete in all
respects shall be submitted together with requisite information and Annexure /
Appendices. It shall be complete and free from ambiguity, change or interlineations.
7.7 The bidder should indicate at the time of quoting against this tender their full postal
and telegraphic/telex /fax addresses and also similar information in respect of their
authorized agents in India, if any.
7.8 The Bidder shall sign its bid with the exact name of the firm to whom the contract is
to be issued. The bid shall be duly signed and sealed by an executive officer of the
Bidder's organization. Each bid shall be signed by a duly authorized officer and in the
case of a Corporation the same shall be sealed with the corporation seal or
otherwise appropriately executed under seal.
7.9 The bidder shall clearly indicate their legal constitution and the person signing the
bid shall state his capacity and also source of his ability to bind the Bidder.
7.10 The power of attorney or authorization, or any other document consisting of
adequate proof of the ability of the signatory to bind the bidder, shall be annexed to
the bid. ONGC may reject outright any bid not supported by adequate proof of the
signatory's authority.
7.11 The Bidder, in each tender, will have to give a certificate in its offer, that the terms
and conditions (Annexure I and II), as laid down in this bidding document are
acceptable to it in toto.
Any interlineations, erasures or overwriting shall be valid only if they are initialed by
the person or persons signing the bid.
13 | P a g e
7.12 The complete bid including the prices must be written by the bidders in indelible ink.
Bids and or prices written in pencil will be rejected.
8.0 CLARIFICATION IN RESPECT OF INCOMPLETE OFFERS
8.1 ONGC has to finalize its purchase within a limited time schedule. Therefore, ONGC
will not seek any clarifications in respect of incomplete offers.
8.2 Prospective bidders are advised to ensure that their bids are complete in all respects
and conform to ONGC's terms, conditions and bid evaluation criteria of the tender.
Bids not complying with ONGC's requirement will be rejected out rightly without
seeking any clarification.
9.0 DOCUMENTS COMPRISING THE BID
9.1 The bid prepared by the Bidder shall comprise the following components, duly
completed:
a) Price schedule.
b) Documentary evidence establishing that the Bidder is eligible to bid and is qualified
to perform the contract if its bid is accepted. The documentary evidence of the
Bidder's qualifications to perform the Contract, if its bid is accepted, shall establish
to the ONGC's satisfaction:
(I) That the Bidder meets all the criteria prescribed in the Bid Evaluation Criteria
& BEC Matrix (Annexure-IV).
c) Documentary evidence that the services to be rendered by the Bidder conform to
the requirements of bidding documents.
d) The Un-priced bid Proforma i.e. Schedule of Rate format provided in the tender
document is also to be enclosed along with technical bid but leaving the price
columns blank or unwritten. Bidder are advised not to add any terms & conditions /
deviations in their price bid and if found any deviations / terms & conditions after
opening of price bid of the firm, the offer submitted by the firm will be rejected out
rightly.
e) The documentary evidence of conformity of the services to the bidding documents
may be in the form of literature, drawings and data and shall consist of:
1) A detailed description of essential technical and performance characteristics of
the services.
14 | P a g e
2) An item-by-item commentary on the ONGC’s technical specifications
demonstrating conformity to the provisions of the technical specifications of the
bidding document.
f) BID SECURITY/ BID BOND:-
g) The bidders will have to furnish EMD for Rs 1,46,650/- (Rupees One Lac Forty Six
Thousand Six Hundred Fifty Only) in the form of crossed demand draft to be
drawn in favour of Dy General Manager (F&A), ONGC, Uran Plant, Uran, issued from
any nationalized / Scheduled Commercial Bank of India or in the form of bid bond/
bank guarantee with a validity of 120 days (including 30 days claim period) from the
date of opening of tender as per Appendix – 4 of Annexure - I, having full contents /
paragraphs, provided in the tender document along with their technical bid. The
EMD submitted by the bidders shall be refunded after the finalization of the contract
in the form of Cheque against Demand Draft submission and in case of bank
guarantee, same will be released & interest on it shall not be payable. Any change in
contents / paragraph of the Bid Bond format as provided in the tender document will
be sole reason for rejection of offer out rightly.
PRICE SCHEDULE
9.2 The Bidder shall complete the appropriate price schedule furnished in the bidding
document, indicating the services to be provided as per the work scope and
schedule of rates thereof.
9.3 Price Bid
9.3.1 The bidders shall indicate on the appropriate price schedule the net unit prices
(wherever applicable) Schedule of Rates format should be read with all other
Sections of this bid package. No bid will be accepted on any forms other than the
one provided by the ONGC in its tender and such offer submitted by the bidder will
be out rightly rejected.
9.3.2 Prices quoted by the bidder shall be firm during the bidder’s performance of the
contract and not subject to variation on any account.
9.3.3 Discount:
Bidders are advised not to indicate any separate discount. Discount, if any, should
be merged with the quoted prices. Discount of any type, indicated separately, will
not be taken into account for evaluation purpose. However, in the event of such an
15 | P a g e
offer, without considering discount, is found to be lowest, ONGC shall avail such
discount at the time of award of contract.
9.4 CONCESSIONS PERMISSIBLE UNDER STATUTES
Bidder, while quoting against this tender, must take cognizance of all concessions
permissible under the statutes including the BENEFIT UNDER CENTRAL SALE TAX
ACT, 1956, failing which it will have to bear extra cost where Bidder does not avail
confessional rates of levies like customs duty, excise duty, sales tax, etc. ONGC will
not take responsibility towards this.
10.0 INCOME TAX LIABILITY
The bidder will have to bear all Income Tax liability both corporate and personal tax.
11.0 BID CURRENCIES
Bidders should quote firm prices in Indian rupee only. Prices quoted in any other
currency shall not be considered.
12.0 PAYMENT CLAUSE
No advance payment and mobilization / demobilization charges at any stage and at
any time will be made to the contractor.
100% payment for the quoted item shall be made within 21 calendar days after
satisfactorily completion of exchanger job duly inspected & certified by user
representative/EIC as per scope of work. if the Performance Bank Guarantee for
Security Deposit is submitted as per BEC Clause B.2.9 And raised the invoice as per
Clause No 7.3 of Annexure II of Tender document
The bill is to be duly certified & verified for payment by Engineer-In-Charge.
12.1 Deduction of taxes / duties shall be made as per applicable laws.
12.2 The final bill of the work shall be cleared only after submitting the proof of surrender
of all photo gate passes issued to the contractor. The proof of surrender of photo
gate passes has to be obtained from issuing authority, and to be submitted to
Engineer-In-Charge before getting cleared the final bill.
12.3 Receipts for payment made on account of a work, when executed by a firm on
partnership must also be signed by the serving partners, except where the
contractors are described in their tenders as a firm in which case the receipts must
16 | P a g e
be signed in the name of the firm by one of the partners, or by some person having
authority to give effectual receipt for the same.
12.4 Payment may be made to the contractor through ECS /STEP. Hence Contractor has
to furnish the following information to ONGC.
(a) Contractor’s Bank Account No.
(b) Bank Code.
(c) Branch name and address.
(d) MICR Code Number.
13.0 VAGUE AND INDEFINITE EXPRESSIONS
13.1 Bids qualified by vague and indefinite expressions such, as "Subject to availability"
etc. will not be considered.
14.0 PERIOD OF VALIDITY OF BIDS
14.1 The Bid shall be valid for acceptance for the period of 90 Days from the date of
opening of tender as indicated in the "INVITATION FOR BID/ BEC" (hereinafter
referred to as validity period) and shall not be withdrawn on or after the
opening of bids till the expiration of the validity period or any extension agreed
thereof.
14.2 In exceptional circumstances, prior to expiry of the original bid validity period, the
ONGC may request the bidder for a specified extension in the period of validity.
The requests and the responses shall be made in writing. The Bidder will undertake
not to vary / modify the bid during the validity period or any extension agreed
thereof. Bidder agreeing to the request for extension of validity of offer shall be
required to extend the validity of Bid Security correspondingly.
15.0 BID SECURITY
15.1 The Bid Security is required to protect the ONGC against the risk of Bidder's
conduct, which would warrant the security’s forfeiture in pursuance to clause 16.7
15.2 Government Departments and Public Sector Undertakings are exempted from
payment of Bid Security.
15.3 The Bidders not covered under Para 16.2 above must enclose with their offer (in
case of two bid systems, with techno-commercial bid) bid security. The amount
for bid security has been indicated in the "Invitation for Bid".
15.4 The Bid Security shall be acceptable in any of the following forms:
17 | P a g e
i) Bank Draft in favour of ONGC valid for 180 days from its date of opening of
technical bid.
ii) Bank Guarantee in the prescribed format as per Appendix 4, valid for 30 days
(Thirty) beyond the date of required validity of offer. The bank guarantee
by domestic bidders will have to be given from the Nationalized / Scheduled
banks, on non-judicial stamp paper as per stamp duty applicable at the
place from where the bid has emanated. The non-judicial stamp paper
should be in the name of the issuing bank.
15.5 ONGC shall not be liable to pay any bank charges, commission or interest on the
amount of Bid Security.
15.6 Subject to provisions in Para 16.2 above, offers without Bid Security will be ignored.
15.7 The Bid Security shall be forfeited by ONGC in the following events:
(a) If Bid is withdrawn during the validity period or any extension thereof duly
agreed by the Bidder.
(b) If Bid is varied or modified in a manner not acceptable to ONGC during the
validity period or any extension of the validity duly agreed by the Bidder.
(c) If a Bidder, having been notified of the acceptance of its bid, fails to furnish
Security Deposit/Performance Bank Guarantee (Performance Security)
within 15 days of notification of such acceptance.
15.8 The Bid Security of unsuccessful Bidders will be returned on finalization of the bid.
The Bid Security of successful bidder will be returned on receipt of Security
Deposit/Performance Bond (Performance Security).
15.9 OFFERS WITH FAX BID BONDS
Normally offers received along with Fax Bid Bond shall not be considered.
However, ONGC reserves the right to consider the offer, provided it is followed by
confirmatory original Bid Bond executed in prescribed Proforma and legally
operative on or before the date fixed for opening of bids (techno-commercial bid
opening date in case of TWO BID SYSTEM) and received by tender inviting
authority within 15 days of opening date of bids (techno-commercial bid opening
date in case of Two Bid System),
If Bidder fails to submit original Bid Bond with the same content as in Fax Bid
Bond and in accordance with bidding document, irrespective of their
status/ranking in tender, the bid will be rejected and ONGC may consider to debar
the Bidder from participating against its future tenders.
18 | P a g e
15.10 TELEX/TELEGRAPHIC/TELEFAX/XEROX/PHOTOCOPY BIDS:
15.11 Telex/Telegraphic/Tele-fax/ Xerox/ Photocopy bids will not be considered.
D. SUBMISSION AND OPENING OF BIDS
16.0 SEALING AND MARKING OF BIDS.
16.1 The original copy of the Bid is to be submitted in a double cover. The inner cover
should be sealed and superscribed as "Tender Number: - UP14C13001 and due for
opening on 06.05.2013 AT 1700 Hrs.” The outer cover should duly bear the tender
number and date of closing/ opening prominently underlined, along with the
address of ONGC’s office, as indicated in Invitation for Bids. The tenders are to be
submitted on or before 1600 hrs. on 06.05.2013 as mentioned in NIT.
16.2 The inner cover shall also indicate the name and address of the Bidder to enable
the bid to be returned unopened in case it is declared "late".
16.3 The right to ignore any offer, which fails to comply with the above instructions, is
reserved. Only one bid should be included in one cover.
16.4 In case of "Two Bid System" offers are to be submitted in triple sealed covers. The
first inner sealed cover will contain Techno-Commercial bids having all details but
with price column blanked out. However a tick mark (√) shall be provided against
each item of the price bid format to indicate that there is a quote against this item
in the Priced Commercial bid. This cover will clearly be superscribed with "Techno-
Commercial bid" along with tender number and item description. The second
sealed inner cover will contain only the price schedule duly filled in and signed and
will be clearly super scribed with “PRICE BID" along with tender number. These
two covers shall be put into outer cover and sealed. The outer cover should duly
bear the tender number and date of closing/ opening prominently underlined,
along with the address of this office.
16.5 Price bids, which remain unopened with ONGC, will be returned to the concerned
bidders within 5 (five) working days of receipt of Performance Guarantee Bond(s)
from the successful bidder(s).
16.6 Any change in quotation after opening of the tender WILL NOT BE CONSIDERED.
16.7 ONGC will not be responsible for the loss of tender form or for the delay in postal
transit.
17.0 DEAD LINE FOR SUBMISSION OF BIDS
19 | P a g e
17.1 The Bid must be received by the ONGC at the address specified in Invitation for Bids
not later than 1500 Hrs (IST) on the notified date of closing of the tender. Offers
sent by hand delivery should be put in the Tender Box at the specified office not
later than 1500 Hrs. (IST) on the specified date. All out-station tenders, if sent by
post, should be sent under registered cover.
18.0 LATE BIDS
18.1 Bidders are advised in their own interest to ensure that bid reaches the specified
office well before the closing date and time of the bid.
18.2 Any bid received after dead line for submission of bid, will be rejected and returned
unopened.
19.0 MODIFICATION AND WITHDRAWAL OF BIDS
19.1 No bid may be modified after the dead line for submission of bids.
20.0 OPENING OF BIDS
20.1 The bid will be opened at 1700 Hrs. (IST) on the date of opening indicated in
"INVITATION FOR BID". The Bidder or his authorized representative may be
present at the time of opening of bid on the specified date, but a letter in the form
annexed at Appendix- 7 of Annexure I hereto must be forwarded to this office
along with bid and a copy of this letter must be produced in the office by the
person attending the opening of bid. Unless this letter is presented by him, he may
not be allowed to attend the opening of bid.
20.2 In case of unscheduled holiday on the closing/opening day of bid, the next working
day will be treated as scheduled prescribed day of closing/opening of bid; the time
notified remaining the same.
E. EVALUATION OF BIDS
21.0 EVALUATION AND COMPARISON OF BIDS
21.1 Evaluation and comparison of bids will be done as per provisions of Bid Evaluation
Criteria & BEC Matrix at Annexure-IV.
22.0 UNSOLICITED POST TENDER MODIFICATIONS:
22.1 Unsolicited post-tender modifications will lead to straight away rejection of the
offer.
20 | P a g e
23.0 EXAMINATION OF BID
23.1 The ONGC will examine the bids to determine whether they are complete, whether
any computational errors have been made, whether required sureties have been
furnished, whether the documents have been properly signed and whether the bids
are generally in order.
23.2 The ONGC will determine the conformity of each bid to the bidding documents.
Bids falling under the purview of “Rejection Criteria” of the bid Evaluation Criteria
of the bidding document will be rejected.
24.0 SPECIFICATIONS:
24.1 The Bidder must note that its Bid will be rejected in case the tender stipulations are
not complied with strictly or the services offered do not conform to the required
specifications indicated therein. The lowest Bid will be determined from among
those Bids, which are in full conformity with the required specifications.
25.0 CONTACTING THE ONGC
No bidder shall contact the ONGC on any matter relating to its bid, from the time of
the opening to the time the contract is awarded.
AWARD OF CONTRACT
26.0 AWARD CRITERIA.
The Corporation will award the contract to the successful bidder whose bid has been
determined to be in full conformity to the bid documents and has been determined
as the lowest evaluated bid.
27.0 ONGC’S RIGHT TO ACCEPT ANY BID AND TO REJECT ANY OR ALL BIDS.
27.1 ONGC reserves the right to reject, accept or prefer any bid and to annul the bidding
process and reject all bids at any time prior to award of contract, without thereby
incurring any liability to the affected Bidder or Bidders or any obligation to inform
the affected Bidder or Bidders of the ground for ONGC’s action. The ONGC also
reserves to itself the right to accept any bid in part or split the order between two
or more bidders.
28.0 NOTIFICATION OF AWARD (NOA)
28.1 Prior to the expiration of the period of bid validity, the ONGC will notify the
successful bidder in writing that its bid has been accepted.
21 | P a g e
28.2 The notification of award will constitute the formation of the contract.
28.3 Upon the successful bidder’s furnishing performance security, pursuant to Clause
No. 15.8, the ONGC will promptly notify each unsuccessful bidder and discharge
their bid securities.
29.0 MOBILISATION PERIOD
Successful bidder has to mobilize & lift the exchanger within 15 days from the date
of placement of LOA.
30.0 SIGNING OF CONTRACT
30.1 The successful bidder is required to sign a formal detailed contract with ONGC
within a maximum period of 30 days of date of Fax order / LOI / NOA. Until the
contract is signed, the Fax order/ LOI / NOA shall remain binding amongst the two
parties. In case of delay in signing the contract on the part of ONGC, contractor shall
be paid 80% of the applicable rates falling due as per the contractual obligations on
adhoc basis, till formal signing of the contact, after which the balance of due
payments shall be released / adjusted against regular bills. However no payment
will be made and mobilization will not be deemed completed, when the delay is on
the part of the contractor to sign the contract, as per draft contract at Annexure-II of
the tender.
31.0 PERFORMANCE SECURITY
31.1 Within 15 (fifteen) days of the receipt of notification of award from the ONGC, the
successful Bidder shall furnish the Performance Security in accordance with the
conditions of the contract, in the Performance Security Form provided at Appendix
1 of Annexure II of the bidding documents, or another form acceptable to the ONGC.
31.2 Failure of the successful Bidder to comply with the requirement of Clause 15.7(C)
shall constitute sufficient grounds for the annulment of the award and forfeiture of
the bid security, in which event the ONGC may make the award to the next lowest
evaluated bidder or call for new bids.
32.0 CORRESPONDENCE.
32.1 ONGC’s Telex/ telegraphic/ fax No. 022-27228211 / cable address is and Grams:
COMONG, URAN.
32.2 All correspondence from Bidders/ contractor shall be made to the office of the
Purchase Authority from where this tender has emanated.
22 | P a g e
32.3 All correspondence shall bear reference to bid number.
33.0 REPRESENTATION FROM THE BIDDER:
Representation(s) if any, in connection with the processing of the tender may be
sent directly to Dy General Manager(p), 116, Dronagiri Bhavan, Uran Plant, Uran -
400702, Dist. Raigad, Maharashtra.
23 | P a g e
ANNEXURE – I APPENDIX - 1
BIDDING DOCUMENT ACKNOWLEDGEMENT PROFORMA
Dated:.................................
DGM(P)-I/C-Contract Cell,
Oil & Natural Gas Corporation Ltd.
Mumbai Region, Uran Plant, Uran-400702.
Dist.-Raigad, Maharashtra State.
Dear Sirs,
We hereby acknowledge receipt of a complete set of Bidding Documents consisting of Five
Annexure (along with their Appendices) enclosed to the "Invitation for Bid” pertaining to “
Job of Re-tubing of heat exchanger “Re-tubing of heat exchangers E-112D, E-512B and E-
2503 A/B of LPG 1, 2 & CFU Plant at Uran”.
Tender No. MR /URAN/28/C/CC/ 59P/2012-13/UP14C13001
We have noted that the closing date for receipt of the tender by ONGC is 06.05.2013 at
1400 hrs. (IST) and opening at 1500 hrs. (IST) on the same day.
We guarantee that the contents of the above said Bidding Documents will be kept
confidential within our organization and text of the said documents shall remain the
property of ONGC and that the said documents are to be used only for the purpose
intended by ONGC.
Our address for further correspondence on this tender will be as under:
……………………………………………………….
……………………………………………………….
TELEX NO:
FAX NO:
TELEPHONE NO: Yours faithfully,
PERSONAL ATTENTION OF:
(IF REQUIRED) (BIDDER WITH SEAL)
24 | P a g e
Note: This form should be returned along with offer duly signed.
ANNEXURE – I
Bid Submission Proforma
APPENDIX - 2
Tender No............................ Contractor's Telegraphic Address:
______________________ ________________________
Telephone No.
TELEX NO:
FAX NO:
To,
DGM(P)-I/C CONTRACT CELL,
Oil & Natural Gas Corporation Ltd.
Mumbai Region, Uran Plant, Uran-400702.
Dist.-Raigad, Maharashtra State
Dear Sirs,
1. I/We hereby offer to supply the services detailed in schedule hereto or such portion
thereof as you specify in the Acceptance of Tender at the price given in the said
schedule and agree to hold this offer open till 05.08.2013
2. I/We have understood and complied with the "Instructions to Bidders” at Annexure - I,
"Bid Evaluation Criteria" at Annexure IV and accepted the "General Terms and
Conditions" at Annexure II for providing services and have thoroughly examined and
complied with the specifications, drawings, Special Conditions of Contract and/or
pattern stipulated at Annexure III hereto and am/are fully aware of the nature of the
service required and my/our offer is to provide services strictly in accordance with the
requirements.
3. The following pages have been added to and form part of this tender:-
4. Agreement at Appendix 3 on purchase of Bidding documents and submission of Tender
has been duly signed and returned herewith.
Yours faithfully,
Signature of Bidder
Address
Dated
Signature of witness
Address
25 | P a g e
Note: This form should be returned along with offer duly signed.
26 | P a g e
ANNEXURE – I
APPENDIX - 3
AGREEMENT
No. Dated
DGM(P)-I/C CONTRACT CELL,
Oil & Natural Gas Corporation Ltd.
Mumbai Region, Uran Plant, Uran-400702.
Dist: Raigad, Maharashtra State
SUB: BIDDING DOCUMENT.
Ref: TENDER No. MR /URAN/28/C/CC/ 59P/2012-13/UP14C13001
ONGC and the Bidder agree that the Notice Inviting Tenders (NIT) is an offer made on the
condition that the Bid would be kept open in its original form without variation or
modification for a period of 90 days AND THE MAKING OF THE BID SHALL BE REGARDED AS
AN UNCONDITIONAL AND ABSOLUTE ACCEPTANCE of this condition of the NIT. They
further agree that the contract consisting of the above conditions of NIT as the offer and
the submission of Bid as the Acceptance shall be separate and distinct from the contract
which will come into existence when bid is finally accepted by ONGC. The consideration
for this separate initial contract preceding the main contract is that ONGC is not agreeable
to sell the NIT to the Bidder and to consider the bid to be made except on the condition
that the bid shall be kept open for 90 (Ninty) days after the last date fixed for the receipt
of the bids and the Bidder desires to make a bid on this condition and after entering into
this separate initial contract with ONGC. ONGC promises to consider the bid on this
condition and the Bidder agrees to keep the bid open for the required period. These
reciprocal promises form the consideration for this separate initial contract between the
parties.
If Bidder fails to honour the above terms and conditions, ONGC shall have unqualified,
absolute and unfettered right to encash / forfeit the bid security submitted in this
behalf.
Yours faithfully yours faithfully
(BIDDER) (Tender Issuing Authority ONGC)
(One copy of this agreement duly signed must be returned along with offer.)
27 | P a g e
ANNEXURE – I
APPENDIX - 4
PROFORMA OF BANK GUARANTEE TOWARDS BID SECURITY BID BOND
Ref. No.................... Bank Guarantee No………..........
Dated ..………………...
To,
DGM(P)-I/C CONTRACT CELL
Oil & Natural Gas Corporation Ltd.
Mumbai Region, Uran Plant, Uran-400702.
Dist.-Raigad, Maharashtra State
Dear Sirs,
1) Whereas Oil & Natural Gas Corporation Ltd. Incorporated under the Companies Act,
1956, having its registered office at Jeevan Bharati, Tower-II, 124 Connaught Circus,
New Delhi - 110001 - India and one of its offices at Mumbai Region,
Dronagiri Bhavan, Uran Plant, Uran-400702, Dist.-Raigad, Maharashtra (hereinafter
called `ONGC' which expression shall unless repugnant to the context or meaning
thereof include all its successors, administrators, executors and assignees) has
floated a Tender No. ________________ and M/s ____________________________
having Head/Registered office at _______________________________ (hereinafter
called the 'Bidder' which expression shall unless repugnant to the context or
meaning thereof mean and include all its successors, administrators, executors and
permitted assignees)have submitted a bid Reference No........................
and Bidder having agreed to furnish as a condition precedent for participation in
the said tender an unconditional and irrevocable Bank Guarantee of Indian Rupees (in
figures)___________________ (Indian Rupees (in words)_________________ only) for
the due performance of Bidder's obligations as contained in the terms of the Notice
Inviting Tender (NIT) and other terms and conditions contained in the Bidding
documents supplied by ONGC which amount is liable to be forfeited on the
happening of any contingencies mentioned in said documents.
2) We (name of the bank)_________________ registered under the laws
of_____________ having head/registered office at _________ (hereinafter referred
to as "the Bank" which expression shall, unless repugnant to the context or meaning
thereof, include all its successors, administrators, executors and permitted
assignees) guarantee and undertake to pay immediately on first demand by ONGC,
the amount of Indian Rs.______ (Indian Rupees_______ (in words) _______________
only) in aggregate at any time without any demur and recourse, and without ONGC
having to substantiate the demand. Any such demand made by ONGC shall be
conclusive and binding on the Bank irrespective of any dispute or difference raised by
the Bidder.
28 | P a g e
3) The Bank confirms that this guarantee has been issued with observance of appropriate
laws of the country of issue.
4) The Bank also agree that this guarantee shall be irrevocable and governed and
construed in accordance with Indian Laws and subject to exclusive jurisdiction of
Indian Courts of the place from where tenders have been invited.
5) This guarantee shall be irrevocable and shall remain in force upto ________________
which includes thirty (30) days after the period of bid validity and any demand in
respect thereof should reach the Bank not later than the aforesaid date.
6) Notwithstanding anything contained hereinabove, our liability under this Guarantee is
limited to Indian Rs. (in figures) _________________ (in words) ________________
only) and our guarantee shall remain in force until (indicate the date of expiry of
bank guarantee) _________.
We must receive any claim under this Guarantee before the expiry of this Bank
Guarantee. If no such claim has been received by us by the said date, the rights of ONGC
under this Guarantee will cease. However, if such a claim has been received by us by the
said date, all the rights of ONGC under this Guarantee shall be valid and shall not cease until
we have satisfied that claim. In witness whereof, the Bank, through its authorized officer,
has set its hand and stamp on this ........ day of ........... at .....................
WITNESS NO. 1
(Signature) (Signature)
Full name and official address (in
legible letters)
Full name, designation and official address
(in legible letters) with Bank stamp.
WITNESS NO. 2
(Signature) (Signature)
Full name and official address (in
legible letters)
Attorney as per Power of Attorney
No........….…….. Dated …………
Note:
(i) This Bank Guarantee/all further communications relating to the Bank Guarantee
should be forwarded to Chief Engineer (E), I/C Contract Cell, Room No.-102,
Dronagiri Bhavan, Uran Plant, Uran –400702.
(ii) Bank guarantee, duly executed as per the above format, is to enclosed with the offer
29 | P a g e
INSTRUCTIONS FOR FURNISHING BANK GUARANTEE
TOWARDS BID SECURITY
1. The Bank Guarantee by Indian Bidders will be given on non- judicial stamp paper as per
stamp duty applicable at the place where the tender has emanated. The non-judicial
stamp paper should be in name of the issuing Bank.
2. Foreign Bidders are requested to execute Bank Guarantee as per law in their country.
3. Please indicate the currency in which Bank Guarantee is being given Indian Rupees have
been mentioned only for illustration. Therefore, in case where Bank Guarantee is being
given in a currency other than Rupees, these terms may be deleted and replaced by
relevant currency.
4. The expiry date as mentioned in Clause 5 & 6 should be arrived at by adding 30 days to
the date of expiry of the bid validity unless otherwise specified in the bidding
documents.
5. The Bank Guarantee by Indian bidders will be given from Nationalized/Scheduled Banks
only. The Foreign bidders will give Bank Guarantees from an Indian Bank situated in their
city. In case no Indian Bank is situated in bidder’s city then Bank Guarantee from foreign
Bank acceptable to ONGC (whether situated in bidder's country or in India) will be
considered. If any foreign bidder desires to furnish guarantee from a bank other than
any Indian Bank, such bidder should furnish collateral security/guarantee/confirmation
from any foreign banks operating in India or the state Bank of India.
30 | P a g e
ANNEXURE – I APPENDIX - 5
CHECK LIST
The bidders are advised in their own interest to ensure that the following points/aspects in
particular have been complied with in their offer failing which the offer is liable to be
rejected.
1. Please tick whichever is applicable and cross whichever is/are not applicable.
2. Please fill up the BEC Matrix in the given format and sign it on each page.
3. Please sign each sheet of the offer.
4. Please number the each & every page of the offer serially.
5. Please submit the tender document copy duly signed & seal on each & every page of
it.
6. The checklist duly filled in must be returned along with the offer.
COMMERCIAL
1.1 Whether requisite tender fee has been paid?
Yes No Not Applicable
1.2 If so, furnish the following: -
By IPO/Bank Draft/ Cashier's Cheque
Name of the Bank/post office
Value
Number of IPO/Bank Draft/Cashier's Cheque/Banker’s Cheque
Date of issue of IPO/Bank Draft/Cashier's Cheque/ Banker’s Cheque
1.3 Whether Bank Draft/ Bank Guarantee/ Banker’s Cheque/ cashier’s Cheque/ proof of
opening of Letter of Credit for the requisite earnest money has been enclosed with
the offer?
Yes No Not Applicable
1.4 If so furnish the following: -
31 | P a g e
i. Name of the Bank
ii. Value
iii. Number
iv. Date of issue
v. Period of validity of the Bank Draft/Bank Guarantee/ Letter of Credit.
(The validity of Bank Draft should not be less than 150 days from the date of opening
of tender).
1.5 Has the bidder's past experience Proforma (Appendix-6) been carefully filled and
enclosed with the offer?
Yes No
1.6 Whether firm prices have been quoted?
Yes No
1.7 Whether rates have been quoted exactly as per the price bid format?
Yes No Not Applicable
1.8 If the Bidder is seeking business with ONGC for the first time, has he given the details
of the parties to whom the offered items/services have been provided in past along
with their performance report?
Yes No
1.9 Whether Appendices 2 & 3 of Annexure-1 of the bidding document in original, duly
filled in and a confirmation that clauses of Annexure I and II are complied / accepted,
enclosed with the offer?
Yes No
1.10 Whether all the clauses of the bidding document are accepted?
Yes No
1.11 Whether details of your registration under Sale Tax/ Central Sales Tax/ Works
Contract Tax/ Service Tax have been indicated in the offer?
32 | P a g e
1.12 Whether the Bidder has quoted after taking into account various incentives and
concessions permissible under statutes?
Yes No Not Applicable
(Signature of the Bidder & Seal of the firm)
ANNEXURE – I
APPENDIX - 6
BIDDERS PAST SERVICES (SIMILAR) PROFORMA
SL.
NO.
NAME & ADDRESS
OF CLIENT
PERIOD DESCRIPTION OF
SERVICES
COMPLETED
SUCCESSFULLY
REMARK
FROM TO
1.
2.
3.
4.
5.
6.
7.
8.
9.
10.
NOTE: CERTIFICATES FROM CLIENTS TO BE ENCLOSED ALONG WITH THIS PROFORMA.
Yes No Not Applicable
33 | P a g e
Signature of the Bidder ___________________________
Name _________________________________________
Seal of the Company _____________________________
ANNEXURE – I Appendix - 7
AUTHORISATION LETTER FOR ATTENDING TENDER OPENING
NO. Date
To,
DGM(P)-I/C CONTRACT CELL,
Oil & Natural Gas Corporation Ltd.
Mumbai Region, Uran Plant, Uran-400702.
Dist.-Raigad, Maharashtra State
SUBJECT: TENDER NO: UP14C13001 DUE ON 06.05.2013
Sir,
Mr...............………………………………………………................. has been authorized to be present at
the time of opening of above tender due on................ at ....................., on my/our
behalf.
Yours faithfully
Signature of Bidder
34 | P a g e
Copy to:
I/C, Contract Cell,
Room No. 116/ 111, Dronagiri Bhavan,
ONGC, Uran Plant, Uran – 400 702, Dist:
Raigad
- for information and for production before
the concerned ONGC officials at the time
of opening of bids.
35 | P a g e
ANNEXURE – I
APPENDIX - 8
PROFORMA CERTIFICATE ON RELATIVES OF DIRECTORS OF ONGC
This has reference to our proposed contract for Rs. ___________________ regarding
___________________________________________________________________________
to be entered in to with Oil and Natural Gas Corporation Limited (ONGC).
For the purpose of Section 297/299 of the Companies Act, 1956, an extract given here
under, we certify that to the best of my/ our knowledge:
(i) I am not a relative of any Director of ONGC.
(ii) We are not a firm in which a Director of ONGC or his relative is a partner.
(iii) I am not a partner in a firm in which a Director of ONGC or his relative is a partner.
(iv) We are not a private company in which a Director of ONGC is a Member of Director.
(v) We are not a company in which Directors of ONGC hold more than 2% of the paid-up
share capital of our company or vice-versa.
Authorized Signatory of the Contracting Party
Place:
Date:
36 | P a g e
ANNEXURE – I APPENDIX – 9
PROFORMA OF DECLARATION & UNDERTAKING BY BIDDER
To,
DGM(P)-I/C-CONTRACT CELL,
Oil & Natural Gas Corporation Ltd.
Mumbai Region, Uran Plant, Uran-400702.
Dist.-Raigad, Maharashtra State
TENDER NO. UP14C13001
Sir,
1. We ______________________________________ (name of the firm) hereby declare
to the effect that neither We, nor any of our allied concerns, partners or associates or
directors or proprietors involved in any capacity, are currently serving any banning orders
issued by ONGC debarring them from carrying on business dealings with ONGC.
2. We ______________________________________ (name of the firm) hereby undertake
that we will provide all the necessary certificates / documents for enabling ONGC to avail in
put VAT Credit and CENVAT credit benefits (wherever applicable), in respect of the
payments of VAT, Excise Duty, Service Tax etc which are payable against the contract (if
awarded) along with documentary evidence for payment of excise duty and service tax.
3. We _______________________________________ (name of the firm) hereby
undertake that we shall submit notarized copy of requisite category ( Maintenance & Repair
) of service tax registration certificate ( as per nature / service of contract ) along with first
invoice submitted for payment against this purchase order , if awarded the job.
4. We _______________________________________ (name of the firm) hereby
undertake that we shall obtain EPF registration number / certificate ( as per nature / service
of contract ) if awarded the job & shall submit the requisite EPF registration certificate ,
copy of EPF remittance along with the first invoice submitted for payment against this
purchase order.
Also we do hereby undertake that we shall maintain EPF details of engaged contractual
manpower as per statutory requirement as per enclosed EPF details Proforma given at
Annexure – I, Appendix-11 @ page no.- 37 & shall comply the prevailing EPF
norms/regulations/statutory guidelines laid by the central government/state government in
this regard.
Yours faithfully
Signature of the Bidder ……………………………………
Name ……………………………………
Seal of the Company ……………………………………
Yours faithfully
37 | P a g e
Signature of Bidder with seal
ANNEXURE – I APPENDIX – 10
Tender No. UP14C13001
HEALTH, SAFETY & ENVIRONMENT (HSE) MANAGEMENT DURING CONTRACTS
Objective
Accident free execution of all works/contracts
Goals
1. To provide a HSE guide to the prospective bidders/contractors, so that they are
made aware of the prevailing HSE practices at ONGC Uran Plant and expectations
from the contractors.
2. This should guide them in appropriate costing of the project, and also help them
execute the contracts in a safe manner.
Please note that –
 The HSE requirements of ONGC can be elaborated in the Pre Bid Conference with all
the bidders.
 There shall be Pre job safety meeting between the successful bidder and ONGC,
before start of the work.
 There shall be regular safety meetings during the execution of the contract.
 In case, the contractor has a HSE manual; there shall be a bridging document
between ONGC & the contractor for common understanding.
CLAUSE I
INSTRUCTIONS TO BIDDERS / CONTRACTORS ON HEALTH SAFETY & ENVIROMENT (HSE)
While at ONGC Uran Plant, everyone (employees of all kind including contractual, and
visitors) has to–
i. Adhere to Acts, Rule and Regulations issued by Central & State Government (i.e Govt
of India and Govt of Maharashtra) e.g. Petroleum Act, Factories Act, Environment
Protection Act, Labour Act etc.
ii. Follow ONGC’s HSE policy which is issued by the Chairman & Managing Director
ONGC.
38 | P a g e
iii. Follow Health, Safety & Environment practices as per national and international
benchmarks. ONGC Uran plant has been certified for Quality, Health, Safety &
Environment (QHSE) Integrated Management System consisting of ISO 9001:2008,
ISO 14001:2004 and OHSAS 18001:2007.
4. Adhere to Standards & Codes for products and work practices followed at ONGC Uran
Plant as per national and international benchmarks. e. g. IS, API, NEMA, ASTM etc.
5. Adhere to the specific rules and procedures followed at Uran plant for ensuring
safety e.g.
 Gate pass for entry in plant/office,
 Vehicle entry permit for entry of vehicles in plant and in process area
 Permit To Work system for carrying out Hot jobs, Entry to confined
spaces, working at heights, Excavation, Cold
works, Electrical lock out, Radiography
 Incident reporting system for reporting any undesirable incident
 Change Management system for carrying out any change / modification in
the plant
 Personal Protective Equipment to be strictly used while working
 Tool Box Talk before commencement of any job
The details of above systems and other safety precautions along with written procedures
and document flow charts etc will be given at the time of Pre Bid conference / signing
contract agreement.
CLAUSE II
The contractor has to particularly ensure the following –
i. Medical examination – Medical fitness of the employees for undertaking a particular
kind of job should be ascertained before employment. The employees deputed at
Uran for work should undergo medical examination (pre employment & periodical)
as per provisions of clause 73-V of Maharashtra Factories Rules 1963.
ii. Working hours – of their workmen are strictly as per provisions of Factories Act.
39 | P a g e
iii. Lifting machines, chains, ropes, and lifting tackles – The use/inspection/certification
of lifting machines, chains, ropes, and lifting tackles should be as per provisions of
clause 64 of Maharashtra Factories Rules 1963. The record of inspection/certification
by competent person (approved by Directorate of Industrial Safety & Health) should
be maintained at site.
iv. Vehicle Entry Permit – Only the vehicles having valid permit are allowed inside the
plant. The contractor shall ensure that the vehicles intended for entry in the plant
fulfill the requirements of Vehicle Entry Permit. This requires that the vehicle should
be in roadworthy condition, and must be fitted with PESO approved spark arrestor.
Some of the necessary documents are driver license for the appropriate class of
vehicle, load test certificate for the cranes, fitness certificate from RTO, permission
for carrying of hazardous chemicals, insurance, PUC, registration etc. Please note
that with such vehicle entry permit, the vehicle can move in white areas/roads of the
plant. For entry in process area, separate permission from shift in-charge shall be
obtained.
v. Scaffolding – The material should be of industrially accepted high standard. Ensure
that the ground is firm before erecting any scaffold. Scaffolding material should be
of industrially accepted high standard, normally should be made of steel/ metallic
frame and tested for the load as well as stability. It should be erected by scaffolding
professionals. Scaffoldings should be inspected and certified for use daily. Record of
such inspection is to be maintained.
vi. Temporary electrical connections – Requisition for temporary electrical connection
should be made in a standard format. The wiring should be such that, there is no
scope of electrocution and burning/sparking. The earthing/bonding and the
insulation should be proper and of adequate rating. Separate earth pits to be made if
required. The cable and the fittings should be of proper rating. Protective relays
should be installed wherever required. The electrical fittings/panels shall be weather
proof/ flameproof depending on the place of its location. Plant’s hazardous area
classification shall be referred for this purpose. Each feeder shall be sealed so that
40 | P a g e
there is no possibility of entry of any rodent/ lizards etc. Power distribution board
shall have adequate ingress protection. Rubber mat shall be placed on the floor
around the distribution board.
vii. Barricading – If a hot job is to be carried out within the battery limits of running unit
or within hazardous area; adequate barricading in form of welding booth or
barricade made from tin/asbestos sheets should be provided.
viii. Simultaneous operations – Operations which are potentially hazardous must not be
undertaken simultaneously. For example; blinding/de-blinding of hydrocarbon
pipelines should not be done when other hot job (cutting/welding) is going on in the
near vicinity.
ix. Hand tools – The hand tools used must be of standard make and fit for use. If work is
to be done within the battery limits of running unit or within hazardous area; utmost
care shall be taken for prevention of spark while using the hand tools. The hammers
and scrapers in such case should be of brass.
x. Environment protection – The contractor while working in the plant area shall
ensure that their activities / operations do not contravene with the Environment
Protection Act 1986 and the rules therein. The contractor shall ensure that the
hazardous waste generated by him is disposed of safely as per MPCB requirements.
xi. Gas detection system – theTheTheThere is an existing gas (Hydrocarbon) detection
system in the plant. In case of longer duration works; the contractor shall install his
own hydrocarbon gas detection system with suitable number of detectors,
annunciator panel and hooter within his work area. For short duration works, regular
monitoring by portable gas detectors shall be done. Also, in case of any gas/fire
alarm or siren from the plant or contractor’s work area, all hot jobs must be stopped
immediately.
xii. Excavation/Trenching/ Road cutting – As a part of excavation permit; it is required
to obtain clearance from electrical, instrumentation & infocom departments. Care
shall be taken for avoiding caving in of the dug up trench. This may require providing
additional supports or temporary supporting structure on the inside walls or proper
41 | P a g e
angle to the side walls. Adequate bank slope shall be made as per soil type. The
excavated soil, stock pile or heavy equipment should be kept at least one meter
away from the trench. Safe means of getting in and out of the trench should be
made near to work area. Barricade shall be provided surrounding the excavation
area.
In case any job requires ‘road cutting’, special permission shall be obtained as per
permit to work system before start of the work.
xiii. Confined space entry/Vessel Entry – No person shall enter the vessel / confined
space without a valid vessel entry permit. The permit requires testing of air sample
in the confined space/vessel. The air in the confined space/vessel must be suitable /
safe for human consumption. No person shall be allowed to work in the confined
space/vessel for a longer duration. Record must be maintained for personnel entry
and exit from the confined space/vessel. The work in confined spaces should be
done as per Buddy system.
xiv. Radiography – Only authorized persons shall handle the radioactive materials. The
area must be cordoned off properly.
xv. Working at height – All works above two meters height must be done with a valid
Hot Work Permit. Persons must work with full body harness safety belt and harness
must be secured properly. It also should be ensured that there is no other
simultaneous work going on just below the work at height.
xvi. Hot works – Any job involving naked flame or any job involving/creating spark or
high heat are termed as Hot Works and a valid Hot Work Permit must be obtained
for such jobs. This is required to be renewed in every shift. It has to be ensured that
the area where such job is to be carried out, should be free from combustible
materials.
xvii. Material handling - No one is allowed to ride on blocks, hooks, and suspended
loads. Guy ropes must not be fastened to existing equipment, pipeline, tank
supports, Load must not remain supported for an unreasonable length of time by
42 | P a g e
any means (Mechanical/ Hydraulic etc.). Suspended load must not be left
unattended.
xviii. Gas cylinder – All gas cylinders must have a valid test certificate. The contractor
must use only the certified gas cylinder within their validity period. The contractor
must adhere to Explosives Act 1884/ Gas Cylinder rules 2004 while using gas
cylinders in the plant.
xix. Machine tools – Machine tools e.g. grinders, cutter etc must be ISI certified/standard
make and safe for use.
xx. Housekeeping – The contractor shall maintain proper housekeeping in their work
area in order to ensure safety and good environment. It should be ensured that the
work area is left clean at end of the work. Contractor’s equipment, tools and tackles
should not cause hindrance in the escape route.
xxi. Illumination – It should be ensured that, all the works are carried out in adequate
light for proper visibility.
xxii. Training & Competency – The contractor employees should undergo safety briefing,
tool box talk and formal training in safety (in-house or external). In case of contracts,
involving a large number of persons, an adequate number of persons must be
trained in first aid. It will be contractor’s responsibility to ensure that their
employees are competent to the perform the job assigned to them.
xxiii. Security – The contractor must employ personnel only after police verification. The
personnel must have valid gate pass for entry in the plant. The passes shall be
renewed periodically and on completion of work. The passes shall be returned to the
security section without fail. It also must be ensured that, their employees leave the
plant premise after duty hours.
xxiv. PPE – The contractor must provide standard quality Personal Protective Equipment
(PPE) like cotton dungarees, industrial shoes & helmet. Apart from these,
appropriate PPE depending on the job like safety goggle, safety belt, gloves, ear
plugs/muffs, dust masks, chemical suit, welding gloves and glass etc should be
43 | P a g e
provided to his workmen before start of the work and ensure that they wear it while
working.
xxv. Emergency Response Plan – The contractor should have an Emergency Response
Plan for the job undertaken. This should dovetail with ONGC’s Disaster Management
Plan.
xxvi. Audit/Inspection – The HSE performance of the contractor is subject to
audit/inspection by ONGC officers.
xxvii. Accident/Incident reporting – All minor/major accidents/incidents shall be reported
/recorded as per existing procedure at ONGC Uran Plant. Also any unsafe condition
should be brought to the notice of Engineer in-charge. The contractor shall submit a
report on HSE performance during periodic project review meeting.
CLAUSE III
GENERAL SAFETY & SECURITY NORMS WHILE WORKING IN ONGC
DO’S
1. Ensure an operational area entry pass (pink colour) before entry into operational
areas (Operational areas include CSU, GSU, LPG, CFU, C2C3, LAN/LPG/C2C3 storage,
Terminal, Slug catcher, Flare area, gas compressors etc.). Those who do not possess
the valid pass should not enter the operational area.
2. Before starting any job, make sure that you have obtained necessary ‘permit to
work’ from ONGC.
3. Tool Box Talk prior to commencement of any hot job is mandatory.
4. In case of chemical spill on the body or in the eyes, use safety shower to wash
immediately. Contact Occupational Health Centre (Tel No. 4555 to 4559) or bring
the affected person to the doctor immediately.
5. Adequate number of certified First Aiders should be available with the contractor at
site. In case of emergency, these first aiders should respond immediately. ONGC
Doctor is available at Occupational Health Center/Dispensary.
6. Use only safety torch certified for use in hazardous areas.
44 | P a g e
7. Remove all flammable materials from the site of welding (e.g. dry grass, gunny bags,
tarpaulin, wooden plank etc.)
8. In case of fire, inform fire station (Tel No. 4444, 4445, 4446) immediately.
9. Use only brass tools (or non sparking tools) while working inside the operational
area.
10. Ensure that during arc welding, the electrode holder is effectively insulated and
properly maintained.
11. Use 3-pin connection for portable grinders.
12. Provide handrails at the sides of the scaffold walk ways to avoid any fall.
13. Avoid shock loads e.g. dropping heavy objects or jumping on the platforms.
14. Keep wrenches and spanners free of oil and grease to avoid spillage from hand.
While working at height on scaffold, use proper container to keep the tools when
not in use.
15. Replace or repair hand tools e.g. hammers, wrenches, screw drivers etc. if found
defective.
16. Dispose off all oil rags, rubbish and papers into proper bins.
17. Report even smallest injury to the doctor and also to the supervisor.
18. Park the crane in safer place, when not in use, with parking brake.
19. Keep tall portable ladders in a safe place, when not in use.
20. Wear safety belt and lifeline while working at height.
21. Obtain permit for carrying vehicle, crane, engine driven pump, engine driver vibrator
and concrete mixer into operating plant area.
22. Beware of the height while moving below overhead electric transmission lines.
23. Check periodically the condition of slings. Use only tested slings for lifting of loads.
24. The contractor’s employees should not use compressed air to clean clothes, hair or
hands, as the pressure is high enough to cause injury. Explosive liquids such as
Naphtha etc shall not be used as cleaning agent. Use only approved cleaning agents.
25. High pressure water from fire water or service/cooling water lines should not be
used for cleaning/bathing.
45 | P a g e
DONT’S
1. Do not carry lighters, matches, transistors, ordinary torches, camera or any other
electronic/ electrical items inside the operational area.
2. Do not jump over/ cross the operational area fencing.
3. Never smoke inside the plant.
4. Do not use any portable hand lights in any location inside the operational area unless
explosion proof.
5. Do not use welding set, if it is not properly earthed.
6. Never use any make shift electrical connections. There should not be any loose
electrical connection.
7. Never carry electrode holder in the arm, since it is often sweaty.
8. Do not enter any confined space like sump, tank, vessel etc. without permit.
9. Do not cut any road without permit.
10. Do not hook up any job or carry out any welding, cutting close to the operational
area without permit.
11. Do not stand on any piping/tubing. Also do not tie any rope/sling to any
piping/tubing.
12. Do not operate any kind of valve, switch, push buttons etc without permission of
ONGC Engineer In-charge.
13. While using crane, do not swing a load near people.
14. Never look directly to the arc produced when welding without eye protection.
15. Do not panic in any emergency. On hearing of plant’s main siren, stop all hot jobs
and contact your supervisor and ONGC engineers at site for further action.
16. Do not block the ways for emergency aid.
17. Do not rest under moving load of crane.
18. Do not walk along the sides of any excavation.
19. Do not use a defective tool.
20. Do not run or shout inside plant unnecessarily.
21. Do not loiter near any operating unit, unless you have a job to perform.
46 | P a g e
22. Do not walk on pipelines.
23. Do not play with compressed air hose, steam etc.
24. Do not use full/ empty drums as work support for any job or in place of ladder.
25. Do not use air, water, steam hoses unless they are properly secured.
26. Do not try to dry your clothes on steam lines or any other hot surfaces.
27. Do not leave tools or materials at height where they may accidentally fall on persons
below.
28. Do not consume alcoholic drinks within the plant area.
29. Do not use shoes with nails.
30. Do not misuse, tamper any fire fighting equipments.
31. Do not use fire water for any other purpose (e.g. washing hands or clothes etc.)
32. Never go nearer to any high voltage source, unless authorized.
33. Do not park the crane in any place to cause hindrance to others.
34. Never over load the crane or any other lifting device. Notice safe working load
(SWL) should be displayed on the lifting device.
35. Do not use a ladder, which is defective in any respect e.g. broken, missing or split
side rails or rungs.
36. Do not throw rubbish here and there.
37. Never misuse/ tamper protective kits.
38. Do not allow accumulation of dry grass/vegetation at any place.
CLAUSE IV
MISCONDUCT
The under mentioned acts of the employees of the Contractor, shall amount to
misconduct and the employees concerned shall be liable to disciplinary action:
1. Tampering Fire Extinguisher in no Fire condition.
2. Using Fire buckets, Fire hydrant, delivery hoses & branches for any purpose
other than fire fighting without the knowledge of Fire Department.
3. Smoking in ONGC premises.
47 | P a g e
4. Carrying gas lighter, match box/ battery operated (unauthorized)
equipment in operational areas.
5. Carrying vehicles without spark arrestor in operating areas.
6. Giving false fire alarm, intentionally.
7. Fighting, Gambling, Horseplay or other misconduct is not permitted on the
site. Threatening another employee or visitor will not be tolerated. Non-
compliance will result in disciplinary measure, which could include
immediate expulsion.
8. Pushing or crowding at elevators, entrances/ exits or on stairways or on
board of vehicles. This may endanger oneself as well as others.
CLAUSE V
The contractor shall maintain following records at the worksite –
1. Pre employment & Periodic Medical examination of their workmen
2. Inspection / testing of tools & tackles by competent authority of Govt of
Maharashtra
3. Work permits/lockouts and vehicle entry permits
4. Leave with wages
5. Duty roaster
6. Wages and Provident Fund
7. Any other document required by law
48 | P a g e
ANNEXURE – I Appendix – 11
Compliance by the contractor of EPF norms/regulations as per statutory requirement.
EPF Details to be maintained & provided by the contractor
Proforma – “PFD”
SUB: PARTICULARS OF PF CONTRIBUTION FOR THE MONTH OF YEAR
(1) Name of the Firm/ Agency/ Contractor ___________________________ Nature of
Contract : Job/ Service contract, AMC,
(2) Postal address of the Contractor
______________________________
(3) Phone No. of the Contractor
__________________________________
(4) Fax No. of the Contractor
___________________________________
(5) Address of PF office from where EPF Code No.
has been allotted: ____________________
(6) EPF Code No. allotted by PF office
_____________________
(14)
Details of
contract
labour
engaged
by the
contractor
Categor
y
No. of
Workers
Prevailin
g Min.
wages
Unskille
d
49 | P a g e
(7) Address of ESIC office from where ESI Code No.
has been allotted: ___________________
(8) ESI Code No. allotted by ESIC Office
(9) Period of Contract : From____________ to
______________
(a) Extension period of contract, if any From
_________ to _______
(b) Place where contract workmen are working
(10) Labour Licence No.
________________________ dtd.
____________
(11) Validity period of Labour Licence
From ___________ To _____________
(12)Details of Deposition of contribution towards
EPF
(a) EPF Challan No. ___________ Amount
____________ Date ___________
(13)Details of Deposition of contribution towards ESI
(a) ESI Challan No. _______________
Amount _________________ Date _________
Semi
skilled
Skilled
Highly
skilled
Total
CERTIFIED THAT
I have paid the notified minimum wages to my contractual workers as per the agreement.
The above information is correct to the best of my knowledge.
In case nay discrepancies or irregularties is /are noticed in this agreement, then ONGC is
free to inform the PF/ESIC Authorities.
50 | P a g e
Within one month on completion/expiry of the contract, I shall fill up the prescribed Forms
for withdrawal or transfer of PF/Pension Account in favour of my contractual workmen
under control and intimate to Principal Employer.
Before the completion of contract, I shall serve one month notice to all my contractual
workers, informing that their services will be terminated.
Within one month on completion/expiry of the contract, I shall pay all the dues/ terminal
dues such as leave with wages, bonus (if applicable), Gratuity (if applicable), to all my
contractual workmen, failing which my Bank Guarantee/ Security Deposit may be withheld
by ONGC.
Date:
Place:
Signature & Seal of the Contractor
51 | P a g e
ANNEXURE – I APPENDIX – 11A
FORMAT FOR REGRET LETTER TO BE SUBMITTED ON THE LETTER HEAD OF THE BIDDER
(IN CASE THE BIDDER IS NOT SUBMITTING HIS OFFER)
Ref No: ___________ Dated: ________
To,
DGM(P)-I/C-CONTRACT CELL,
Oil & Natural Gas Corporation Ltd
Mumbai Region, Uran Plant, Uran-400702
Dist.-Raigad, Maharashtra State
Sub: Regret Letter
Ref: Tender No UP14C13001
Dear Sir,
With reference to subject tender, we are unable to quote due to the reason mentioned
below (√ marked). We are returning the total tender document to you.
1) The item/service does not fall in our product/servicing range
2) We do not meet BEC (Bid Evaluation Criteria) as specified in tender
3) We cannot meet the technical specifications as specified in tender
4) There is an order overbooking
5) Any other reason (please specify)
6) We need some more time for submission of offer and hence request for extension of
bid submission date
Yours faithfully,
(Seal & Signature of the Bidder)
52 | P a g e
ANNEXURE – I APPENDIX - 12
PARTICULARS OF VENDOR REQUIRED FOR PURPOSE OF MAKING PAYMENT THROUGH
ELECTRONIC PAYMENT MECHANISM
(PLEASE ATTACH ONE CANCELLED CHEQUE)
(1) Vendor/Customer Name: _______________________________________
(2) Complete Address _______________________________________
_______________________________________
_______________________________________
_______________________________________
(3) Bank’s Name _______________________________________
(4) Beneficiary A/c No. _______________________________________
(5) Account Type _______________________________________
(6) Branch Name _______________________________________
(7) Bank Address _______________________________________
_______________________________________
_______________________________________
(8) MICR Code _______________________________________
(9) Bank IFSC Code : _______________________________________
53 | P a g e
Authorized Signatory with Name & seal of Bidder
ANNEXURE – I APPENDIX – 12A
FORMAT OF AGREEMENT BETWEEN BIDDER AND THEIR PARENT COMPANY (TO BE MADE
ON STAMP PAPER OF REQUISITE VALUE AND NOTORISED)
This agreement made this day of month year by and between M/s.
____________________(Bidder's particular) ___________ hereinafter referred to as bidder
of the first part and M/s. (Parent Company's particulars) hereinafter referred to as
"Parent Company" on the other part, whereas M/s. Oil & Natural Gas Corporation Limited
(hereinafter referred to as ONGC) has invited offers vide their tender No.
_________________________________________________________________________
for and whereas M/s.
_________________________________________________________________________
(Bidder) intends to bid against
the said tender and desires to have a financial and technical support of M/s.
_______________(Parent Company) and whereas Parent Company represents that they
have gone through and understood the requirements of subject tender and are capable and
committed to provide the services as required by the bidder for successful execution of the
contract, if awarded to the bidder.
Now, it is hereby agreed to by and between the parties as follows:
1. ______________M/s. (Bidder) will submit an offer to ONGC for the full scope of work
as
envisaged in the tender document as a main bidder and liaise with ONGC directly for
any clarifications etc. in this context.
2. M/s.(Parent Company) as a sub-contractor undertakes to provide financial,
technical support and expertise, expert manpower and procurement assistance and
project management to support the bidder to discharge its obligations as per the Scope
of work of the tender / Contract for which offer has been made by the Parent Company
and accepted by the bidder.However, as a minimum, following services will be
necessarily covered by the Parent Company:
3. This agreement will remain valid till validity of bidder's offer to ONGC including
extension if any and till satisfactory performance of the contract in the event the
contract is awarded by ONGC to the bidder
4. It is further agreed that for the performance of work during contract period bidder
and Parent Company shall be jointly and severely responsible to ONGC for satisfactory
execution of the contract.
5. However, the bidder shall have the overall responsibility of satisfactory execution of
the contract awarded by ONGC.
In witness whereof the parties hereto have executed this agreement on the date
mentioned above.
For and on behalf of For and on behalf of
(Bidder) (Parent Company)
Witness:
54 | P a g e
1) 1)
2) 2)
ANNEXURE – I APPENDIX – 12B
PARENT COMPANY GUARANTEE
DEED OF GUARANTEE
THIS DEED OF GUARANTEE executed at ........................ this .......... day of ............. by
M/s
................................... (mention complete name) a company duly organized and existing
under the laws of...........................(insert jurisdiction/country), having its Registered Office
at
......................................................hereinafter called "the Guarantor" which expression shall,
unless executed by or repugnant to the subject or context thereof, be deemed to include
its successors and permitted assigns.
WHEREAS
M/s Oil & Natural Gas Corporation Limited, a company duly registered under the
Companies Act 1956, having its Registered Office at 8th
floor, Jeevan Bharti, Tower-ll, 124,
Indira Chowk
(Connaught Circus), New Delhi, India, and having an office, amongst others, at .........................
(insert purchase centre address) hereinafter called "the Corporation" which expression
shall
excluded by o r repugnant to t he context t hereof, bed eemed to i nclude i ts successor
And assigns, invited tender number ..................for ..........on ..................
M/s ............................ (mention complete name), a company duly organized and existing
under the laws of ..................... (insert jurisdiction/country), having its Registered Office at
.............................. (give complete address) hereinafter called "the Company"
which
expression shall, unless excluded by or repugnant to the subject or context thereof, be
deemed to include its successor and permitted assigns, *a wholly owned subsidiary of the
Guarantor, have, in response to the above mentioned tender invited by the Corporation,
submitted their bid number .............................. to the Corporation with one of the
condition that the Company shall arrange a guarantee from its parent company
guaranteeing due and satisfactory performance of the work covered under the said tender i
ncluding any change. therein as may be deemed appropriate by the Corporation at any
stage. The Guarantor represents that they have gone through and understood the
requirement of the above said tender and are capable of and committed to provide
technical, financial and such other supports as may be required by the Company for
successful execution of the same.
55 | P a g e
The Company and the Guarantor have entered into an agreement dated as per which the
Guarantor shall be providing technical, financial and such other supports as may be
necessary for performance of the work relating to the said tender.
Accordingly, at the request of the Company and in consideration of and as a requirement
for the Corporation to enter into agreement(s) with the Company, the Guarantor hereby
agrees to give this guarantee and undertakes as follows:
1. The Guarantor (Parent Company) unconditionally agrees that in case of non-
performance by the Company of any of its obligations in any respect, the Guarantor shall,
immediately on receipt of notice of demand by the Corporation, take up the job without
any demur or objection, in continuation and without loss of time and without any cost to
the Corporation and duly perform the obligations of the Company to the satisfaction of the
Corporation. In case the Guarantor also fails to discharge its *strike out, if not applicable
obligations herein and complete the job satisfactorily, the Corporation shall have absolute
rights for effecting the execution of the job from any other person at the risks and costs of
the Guarantor. The Guarantor also undertakes to make good and loss that may be caused
to the Corporation for non-performance or unsatisfactory performance by the Guarantor
or the Company of any of their obligations.
2. The G uarantor agrees that the Guarantee herein contained shall remain valid and
enforceable till the satisfactory execution and completion of the work (including
discharge of the warranty obligations) awarded to the Company.
3. The Guarantor shall be jointly with the Company as also severally responsible for
satisfactory performance of the contract entered between the Company and the
Corporation.
4. The liability of the Guarantor, under this Guarantee, is limited to the value of the
contract entered between the Company and the Corporation i.e. up to .................
This
will, however, be in addition to the forfeiture of the Performance Guarantee
furnished by the Company.
5. The Guarantor represents that this Guarantee has been issued after due observance
of the appropriate laws in force in India. The Guarantor hereby undertakes that the
Guarantor shall obtain and maintain in full force and effect all the governmental and
other approvals and consents that are necessary and do all other acts and things
necessary or desirable in connection therewith or for the due performance of the
Guarantor's obligations hereunder.
6. The Guarantor also agrees that this Guarantee shall be governed and construed in
56 | P a g e
accordance with the laws in force in India and subject to the exclusive jurisdiction of
the courts of.............. , India.
7. The Guarantor hereby declares and represents that this Guarantee has been given
without any undue influence or coercion from any person and that the Guarantor
has full understood the implications of the same.
8. The Guarantor represents and confirms that the Guarantor has the legal capacity,
power and authority to issue this Guarantee and that giving of this Guarantee and
the performance a nd o bservations o f t he o bligations hereunder d o notc
ontravene a ny existing law or any judgement.
For & on behalf of (Parent Company)
Witness :
1.
2.
57 | P a g e
ANNEXURE - II
CONTRACT AND GENERAL CONTRACT CONDITIONS
(To be signed with the successful bidder)
This CONTRACT is made and entered into on this …..day of …Two thousand and …. by and
between OIL & NATURAL GAS CORPORATION LIMITED, a CORPORATION registered under
the Companies Act 1956, having its registered office at Jeevan Bharati, Tower-II, 124,
Connaught Circus, New Delhi- 110 001, India and one of its work center at Mumbai Region,
Uran Plant, Uran-400702, Dist-Raigad, Maharashtra State (hereinafter referred to as
“CORPORATION” which expression shall include its successors, administrators, executors
and assignees) on the one part and M/s ……………., a company registered under the
companies Act with its Registered office at ……… referred to as the “CONTRACTOR” (which
expression shall include its successors, administrators, executors and permitted assignees)
on the other part.
Whereas CORPORATION is desirous of …………… (Description of services) for carrying out
Corporation’s operations conforming to specifications as set forth in the Scope of Work at
Annexure-III of this agreement.
And Whereas the CONTRACTOR represents that it has the necessary experience for carrying
out CORPORATION's operations as referred to herein and has submitted a bid for providing
58 | P a g e
the required services against CORPORATION’s Tender No………. all in accordance with the
terms and conditions set forth herein and any other reasonable requirements of the
CORPORATION from time to time.
And Whereas CORPORATION's has accepted the bid of the CONTRACTOR and has placed Fax
order / Letter of Intent /Notification Of Award vide its letter ……….. dated…. On the
CONTRACTOR.
Now it is hereby agreed to by and between the parties as under:
1.0 DEFINITIONS:
1.1 Unless inconsistent with or otherwise indicated by the context, the following terms
stipulated in this CONTRACT shall have the meaning as defined hereunder.
1.2 CONTRACT
Shall mean a written CONTRACT signed between ONGC and the CONTRACTOR (the
successful bidder) including subsequent amendments to the CONTRACT in writing
thereto.
1.3 CORPORATION/ ONGC:
Shall mean OIL & NATURAL GAS CORPORATION LTD., India and shall include its legal
representatives, successors and permitted assignees.
1.4 SITE
Shall mean the place in which the operations/services are to be carried out or places
approved by the ONGC for the purposes of the CONTRACT together with any other
places designated in the CONTRACT as forming part of the site.
1.5 CORPORATION’S SITE REPRESENTATIVE/ENGINEER
Shall mean the person or the persons appointed by ONGC from time to time to act
on its behalf at the site for overall co-ordination, supervision and project
management at site.
1.6 CONTRACTOR:
59 | P a g e
Shall mean any person/ persons/ firm/ company etc. to whom work has been
awarded and whose bid has been accepted by ONGC and shall include its authorized
representatives, successors and permitted assignees.
1.7 SUB-CONTRACT:
Shall mean order/contract placed by the CONTRACTOR for any portion of the
CONTRACTOR work sub-letted with necessary written consent of ONGC on third
party. Such sub-letting shall not relieve the CONTRACTOR from any obligation, duty
or responsibility under the contract.
1.8 SUB-CONTRACTOR:
Shall mean any person or persons or firm or their legal representatives, successors,
assignees to whom part of CONTRACTOR has been sub-letted by the CONTRACTOR
after necessary consent of ONGC.
1.9 CONTRACTOR’S REPRESENTATIVE
Shall mean such person/or persons duly appointed representative at the site and
base as the CONTRACTOR may designate in writing to the ONGC as having authority
to act for the CONTRACTOR in matters affecting the work and to provide the
requisite services.
1.10 CONTRACT PRICE
Shall mean the sum accepted or the sum calculated in accordance with the rates
accepted by ONGC and amendments thereof, and shall include all fees, registration
and other charges paid to statutory authorities without any liability on ONGC for any
of these charges. The prices will remain firm during currency of the CONTRACTOR
unless specifically agreed to in writing by ONGC.
1.11 DAY
Shall mean a calendar day of twenty-four (24) consecutive hours beginning at 0000
hours with reference to local time at the site.
1.12 EQUIPMENT/MATERIALS/GOODS:
60 | P a g e
Shall mean and include any equipment, machinery, instruments, stores, goods which
CONTRACTOR is required to provide to the ONGC for/under the CONTRACTOR and
amendments thereto.
1.13 WORKS / OPERATIONS:
Shall mean all work to be performed by the CONTRACTOR as specified in the Scope
of Work under this CONTRACT.
1.14 GUARANTEE/ WARRANTEE:
Shall mean the period and other conditions governing the warranty/guarantee of the
works as provided in the CONTRACT.
The contractor shall warrant that every work executed hereunder shall be free from
all defects and faults in materials, workmanship, handling, etc. for a period of 12
(Twelve) months from the date of successful completion of the job and shall be of
the highest grade and consistent with established and accepted standard of
materials and workmanship of the type contracted for and in full conformity with the
design, drawing and specifications. If during the aforesaid period the work or the
part of the work is discovered to be defective or faulty or not in conformity with the
specifications (decision of ONGC on that behalf being final and binding on the
contractor), then the ONGC shall be entitled for the cost of work so found defective
and also of damages sustained as a result of such defective work. The contractor
shall, if required, also carry out repairs/replacement free of cost or at the option of
the ONGC make payment to ONGC within two months of receipt of advice, the value
thereof at the contract price and such other expenditure and damages as may arise
by reason of the breach of condition therein specified.
Nothing herein contained shall or prejudice against any other right of the ONGC on
that behalf or otherwise.
Where the Contractor does not directly execute the work itself and the warranty
given by the person/firm carrying out such work on their behalf deviates from the
above said warranty, it shall be responsibility of the contractor to abide the warranty
stipulated by the ONGC.
1.15 MOBILISATION:
61 | P a g e
Shall mean rendering the equipment fully manned and equipped as per
CONTRACTOR and ready to begin work at site designated by ONGC after ONHIRE
survey and ONGC’s acceptance thereafter. The date and time of ONGC’s acceptance
of ONHIRE survey will be treated as the date and time of mobilization.
1.16 DEMOBILISATION:
Shall mean the removal of all things forming part of the mobilization from the site of
ONGC. The date and time of OFFHIRE survey shall be treated as the date and time of
demobilization.
1.17 DRAWINGS:
Shall mean and include all Engineering sketches, general arrangements/ layout
drawings, sectional plans, all elevations, etc. related to the CONTRACTOR together
with modification and revision thereto.
1.18 SPECIFICATIONS:
Shall mean and include detailed description, statements to technical data,
performance characteristics, and standards (Indian as well as International) as
applicable and as specified in the CONTRACT.
1.19 INSPECTORS:
Shall mean any person or outside Agency nominated by ONGC to inspect equipment,
materials and services, if any, in the CONTRACTOR stage-wise as well as final as per
the terms of the CONTRACT.
1.20 TESTS:
Shall mean such process or processes to be carried out by the CONTRACTOR as are
prescribed in the CONTRACT considered necessary by ONGC or their representative
in CONTRACT to ascertain quality, workmanship, performance and efficiency of
equipment or services thereof.
1.21 FACILITY
Shall mean all property of the ONGC owned or hired by ONGC.
62 | P a g e
1.22 THIRD PARTY
Shall mean any group, CORPORATION, person or persons who may be engaged in
activity associated with the work specified but who shall remain at an arm’s length
from the work and who shall not have a direct responsibility or authority under the
terms of this CONTRACT.
1.23 APPROVAL:
Shall mean and include the written consent duly signed by ONGC or their
representative in respect of all documents, drawings or other particulars in relation
to the CONTRACT
2.0 SCOPE OF WORK / CONTRACT:
Scope of the CONTRACTOR shall be as defined in the CONTRACT, specifications,
drawings and Annexures thereto at Annexure-IV.
3.0 DURATION OF THE CONTRACT:
The contract shall be valid for a period of 6 Months from the date of placement of
LOA.
4.0 NOTICES AND ADDRESSES:
For the purposes of this CONTRACT, the addresses of the parties will be as follows
and all correspondence and notices in relations to the present CONTRACT sent to the
parties at the addresses mentioned below shall be deemed to be sufficient service of
notice on the parties. All such notices as well as reports, invoices and other relevant
material shall be addressed to the parties as per the address given below:
4.1 OIL & NATURAL GAS CORPORATION LIMITED
For CONTRACT related communication
DGM(P)-I/C CONTRACT CELL,
116, Dronagiri Bhavan, Mumbai Region,
63 | P a g e
Uran Plant, Uran-400702, Dist.- Raigad,
Maharashtra State.
FAX: 022-27222811
For operations, reports and payments
a. Designated Engineer-in-Charge for contract execution, report & bill / payment
certification & verification.
b. Bills are to be raised in the name of Dy. General Manager (F&A), ONGC, Uran
Plant, Uran.
With a copy to:
Shri B. B.NAYAK, DGM (P) – I/C Contract Cell
116, Dronagiri Bhavan, Mumbai Region,
Uran Plant, Uran-400702, Dist.- Raigad,
Maharashtra State.
FAX: 022-27222811
4.2 CONTRACTOR’S REGISTERED OFFICE AND ADDRESS
………………………………………
………………………………………
………………………………………
Fax No………………………………
5.0 DUTIES AND POWER / AUTHORITY:
5.1 The duties and authorities of the ONGC’s Engineer-in-Charge OR Site Representative
are to act on behalf of the ONGC for:
(i) Overall supervision, co-ordination and Project Management at site
(ii) Proper utilization of equipment and services.
(iii) Monitoring of performance and progress & Payment thereof.
64 | P a g e
(iv) Commenting/ countersigning on reports made by the Contractor’s
representative at site in respect of works, receipts, consumption etc. after
satisfying himself with the facts of the respective cases.
(v) He shall have the authority, but not obligation at all times and any time to
inspect/test/examine/ verify any equipment machinery, instruments, tools,
materials, personnel, procedures and reports etc. directly or indirectly
pertaining to the execution of the work. However this shall not construe to
imply an acceptance by the inspector. Hence, the overall responsibility of
quality of work shall rest solely with the CONTRACTOR.
(vi) Each and every document emerging from site in support of any claim by the
contractor has to have the countersignature/ comments of the ONGC’s
representative/engineer without which no claim will be entertained by the
ONGC.
5.2 CONTRACTOR’S REPRESENTATIVE:
(i) The Contractor’s representative shall have all the powers requisite for the
performance of the works.
(ii) He shall liaise with ONGC’s representative for the proper co-ordination and
timely completion of the works and on any matter pertaining to the works.
(iii) He will extend full co-operation to ONGC’s representative/inspector in the
manner required by them for supervision/inspection/observation of
equipment, material, procedures, performance, reports and records
pertaining to works.
(iv) To have complete charge of Contractor’s personnel engaged in the
performance of the work and to ensure compliance of rules and regulations
and safety practice.
6.0 CONTRACT DOCUMENT:
6.1 Governing language:
65 | P a g e
The governing language for the CONTRACT shall be English. All CONTRACT
documents and all correspondence and communication to be given and all other
documentation to be prepared and supplied under the CONTRACT shall be written in
English and the CONTRACT shall be construed and interpreted in accordance with
English language.
6.2 Entire Agreement:
The CONTRACT constitutes the entire agreement between the ONGC and the
CONTRACTOR with respect to the subject matter of the CONTRACT and supersedes
all communication, negotiations and agreement (whether written or oral) of the
parties with respect thereto made prior to the date of this agreement.
6.3 Save where the context otherwise requires, words imparting singular number shall
include the plural and vice versa and words imparting neutral gender shall include
masculine or feminine gender and vice versa.
6.4 Modification in Contract:
All modifications leading to changes in the Contract with respect to technical and/or
commercial aspects, including terms of delivery shall be considered valid only when
accepted in writing by ONGC by issuing amendment to the Contract. ONGC shall not
be bound by any printed conditions, provisions in the Contractor’s BID, forms of
acknowledgement of Contract, invoice, packing list and other documents which
purport to impose any condition at variance with or supplement to Contract.
6.5 Assignment:
The CONTRACTOR shall not, save with the previous consent in writing of the ONGC,
sublet/SUB-CONTRACT, transfer or assign the CONTRACTOR any part thereof in any
manner whatsoever. However, such consent shall not relieve the CONTRACTOR
from any obligation, duty or responsibility under the CONTRACT and CONTRACTOR
shall be fully responsible for the services hereunder and for the execution and
performance of the CONTRACT.
6.6 Waivers and amendments:
66 | P a g e
a) Waivers: - It is fully understood and agreed that none of the terms and
conditions of this CONTRACT shall be deemed waived by either party unless
such waiver is executed in writing only by the duly authorized agents or
representative of both the parties. The failure of either party to execute any
right shall not act as a waiver of such right by such party.
b) Amendments: - It is agreed that CONTRACTOR shall carry out work in
accordance with the completion program to be furnished by the CORPORATION,
which may be amended from time to time by reasonable modifications as
CORPORATION sees fit.
7.0 REMUNERATION AND TERMS OF PAYMENT
7.1 CORPORATION shall pay to CONTRACTOR for the services, to be provided by the
CONTRACTOR as per the Scope of Work (Annexure-III), as per the price Schedule at
Annexure- III The rates payable, shall be firm during the entire CONTRACT period.
7.2 All Bills along with relevant supporting documents shall be submitted in triplicate
addressed to the DY General Manager (F&A), ONGC, Dronagiri Bhavan, Mumbai
Region, Uran Plant, Uran-400702, Dist.- Raigad, Maharashtra State. FAX: 022-
27222811
7.3 Invoices with original supporting documents duly countersigned by the
CORPORATION’s representative/ engineer wherever applicable will be submitted
monthly by the CONTRACTOR to CORPORATION and payment shall be made within
21 (twenty one) calendar days from the date of receipt of invoice at the above office.
The original invoice should also accompany the following documents/details:
1) Along with first invoice:
Following documents / details should be invariably furnished along with the first
invoice:
(a) Copy of valid registration certificate under the Service Tax rules.
(b) Particulars required for making payments through ‘Electronic Payment
Mechanism’, in accordance with the clause on ‘MODE OF PAYMENT’
appearing in Annexure-I (i.e. ‘Instructions to bidders’) of bid document.
(c) Mobile No.
(d) e-mail ID.
67 | P a g e
2) In case of Periodical / Monthly payment:
a) Invoice (i.e. Tax invoice as per relevant Service Tax rules, in original and
duplicate, clearly indicating Service Tax registration number, Service
Classification, Rate and amount of Service Tax shown separately).
b) Insurance policies and proof of payment of premium (As applicable).
c) Details of statutory payments like PF, ESI and EPF etc. (As applicable).
d) Undertaking by the contractor regarding compliance of all statutes.
e) Certificate by the contractor stating that labor have been paid not less than
minimum wages.
7.4 In the event of any dispute in a portion or whole of any invoice, the CORPORATION
shall make payment of undisputed portion and shall promptly notify the Contractor’s
representative in writing for the remaining portion in CONTRACT to mutually resolve
the dispute and if resolved in part or full, payment shall be made to the
CONTRACTOR within 30 days of such settlement.
7.5 No advance payment and mobilization / demobilizations charges at any stage and at
any time will be made to the contractor.
100% payment for the quoted item shall be made within 21 calendar days after
satisfactorily completion of exchanger job duly inspected & certified by user
representative/EIC as per scope of work, if the Performance Bank Guarantee for
Security Deposit is submitted as per BEC Clause B.2.9 And raised the invoice as per
Clause No 7.3 of Annexure II of Tender document
7.6 The bill is to be duly certified & verified for payment by Engineer-In-Charge.
The bill of the work shall be cleared only after submitting the proof of surrender of
all photo gate passes issued to the contractor. The proof of surrender of photo gate
passes has to be obtained from issuing authority, and to be submitted to Engineer-
In-Charge before getting cleared the final bill. The bill is to be duly certified &
verified for payment by Engineer-In-Charge.
Deduction of Taxes, Duties, Levies and Service Tax etc. shall be made as per
applicable laws.
68 | P a g e
7.7 Receipts for payment made on account of a work, when executed by a firm on
partnership must also be signed by the serving partners, except where the
contractors are described in their tenders as a firm in which case the receipts must be
signed in the name of the firm by one of the partners, or by some person having
authority to give effectual receipt for the same.
7.8 ONGC's right to question the amounts claimed
Payment of any invoice shall not prejudice the right of the Operator to question the
allow ability under this Agreement of any amounts claimed therein, provided
ONGC, within one year beyond the expiry of each CONTRACT year, delivers to
CONTRACTOR, written notice identifying any item or items which it questions and
specifying the reasons therefore. Should ONGC so notify CONTRACTOR, such
adjustment shall be made, as the parties shall agree. These provisions shall be
reciprocal for similar rights to the CONTRACTOR.
The CONTRACTOR shall provide on demand a complete and correct set of records
pertaining to all costs for which it claims reimbursement from ONGC and as to any
payment provided for hereunder, which is to be made on the basis of Contractor’s
costs.
8 CLAIMS, TAXES & DUTITES, FEES AND ACCOUNTIING:
CLAIMS: -
CONTRACTOR agrees to pay all claims, taxes and fees for equipment, labour,
materials, services and supplies to be furnished by it hereunder and agrees to allow
no lien or charge resulting from such claims to be fixed upon any property of
CORPORATION. CORPORATION may, at its option, pay and discharge any liens or
overdue charges for Contractor’s equipment, labour, materials, services and supplies
under this CONTRACT and may thereupon deduct the amount or amounts so paid
from any sum due or thereafter become due, to CONTRACTOR hereunder.
8.1 NOTICE OF CLAIMS: -
CONTRACTOR or CORPORATION, as the case may be, shall promptly give the other,
notice in writing of any claim made or proceeding commenced for which that party is
69 | P a g e
entitled to indemnification under the CONTRACT. Each party shall confer with the
other concerning the defense of any such claims or proceeding, shall permit the
other to be represented by counsel in defense thereof, and shall not effect
settlement of or compromise any such claim or proceeding without the other’s
written consent.
TAXES: -
CONTRACTOR, unless specified otherwise in the CONTRACT, shall bear all tax
liabilities including service tax, duties, Govt. levies etc. including customs duty,
Corporate and personnel taxes levied or imposed on the CONTRACTOR on account of
payments received by it from the CORPORATION for the work done under this
CONTRACT. It shall be the responsibility of the CONTRACTOR to submit to the
concerned Indian authorities, the returns and all other concerned documents
required for this purpose and to comply in all respects with the requirements of the
laws in this regard, in time.
PERSONNEL TAXES: -
The CONTRACTOR shall bear all personnel taxes levied or imposed on its personnel,
Sub-Contractor’s personnel, vendors, consultants etc. on account of payment
received under this CONTRACT.
CORPORATE TAXES: -
The CONTRACTOR shall bear all Corporate taxes, levied or imposed on the
CONTRACTOR on account of payments received by it from the CORPORATION for the
work done under this CONTRACT.
If it is so required by the applicable laws in force at the time of payment, the
CORPORATION shall withhold from the amount due to the CONTRACTOR and pay to
the Indian Tax authorities any tax levied or assessed on account of the Contractor’s
operations pursuant to this CONTRACT.
It is noted that CONTRACT u/s 195(2) of the Income Tax Act, 1961 for the purpose of
deduction of tax at source will be obtained by ONGC from the Dy. Commissioner of
Income Tax (Asst.), Navi Mumbai / Mumbai or special range-I, Dehradun.
70 | P a g e
It is noted that CONTRACT u/s 195(2) of the Income Tax Act, 1961 for the purpose of
deduction of tax at source will be obtained by ONGC from the Dy. Commissioner of
Income Tax(Asst.), Special Range-I, Dehradun. In view of the Central Board of Direct
Taxes(CBDT)’s notification no 9579 dated 5.8.94 the foreign CONTRACTOR is
responsible for filing the returns of their income as well as their SUB-CONTRACTOR’s
assignees including that of their partner in the Joint Venture CONTRACT’S (whether
Indian or otherwise) and get their assessment completed with the Dy. Commissioner
of Income Tax (Asst.), Special Range-I, Dehradun, India).
For the lapse, if any on the part of the CONTRACTOR and consequential penal action
taken by the Tax department, the CORPORATION shall not take any responsibility
whether financial or otherwise.
9.0 PERFORMANCE:-
The CONTRACTOR shall undertake to perform all services under this CONTRACT with
all-reasonable skill, diligence and care in accordance with sound industry practice to
the satisfaction of the CORPORATION and accept full responsibility for the
satisfactory quality of such services as performed by them. Any defect, deficiencies
noticed in the Contractor’s service will be promptly remedied by the CONTRACTOR
within 10 days upon the receipt of written notice from the CORPORATION to
improve their performance failing which the CORPORATION may terminate the
CONTRACT by giving the CONTRACTOR 30 (thirty) days written notice.
10.0 PERFORMANCE BOND:-
The CONTRACTOR shall furnish to the CORPORATION within 15 days from the date of
fax CONTRACT/ Letter of Intent (LOI), security deposit in the form of a Bank draft or
an irrevocable Bank Guarantee (as per the Proforma enclosed at Appendix-I of this
Annexure II for the period specified in the bid document/ Notification of Award/ LOI,
towards performance under this CONTRACT for the period of contract including
Warranty/. Guarantee.
In the event CONTRACTOR fails to honour any of the commitments entered into
under this agreement, and /or in respect of any amount due from the CONTRACTOR
to the CORPORATION, the CORPORATION shall have unconditional option under the
guarantee to invoke the above bank guarantee and claim the amount from the bank.
The bank shall be obliged to pay the amount to the CORPORATION on demand.
71 | P a g e
11.0 SECURITY DEPOSIT
11.1 A sum of 10% of the accepted annual contract value of the tender or actual value of
the work order whichever is applicable is required to be deposited by the contractor
as security deposit with the ONGC in the form Demand Draft drawn in favour of Dy
Gen. Manager (F&A), ONGC, Uran Plant, Uran payable at Uran, or in the form of bank
guarantee as per prescribed format. The validity of the said bank guarantee shall be
for entire period of liability as per Clause 1.14 of this part. EMD submitted in the
form of DD or Bank Guarantee shall be returned to the successful bidder after
receipt of security deposit.
11.2 If the contractor / sub contractor or their employees shall break, deface or destroy
the property belonging to the ONGC or other during the execution of the contract,
the same shall be made good by the contractor at his own expenses and in default
thereof, the engineer-in-charge may cause the same to be made good by other
agencies and recover expenses from the contractor (for which the certificate of
engineer-in-charge shall be final).
11.3 All compensation or other sums of money payable by the contractor to ONGC or
recoveries to be made under terms of this contractor may be deducted from his
security deposit or from any sums which may be due or may become due to the
contractor on any account whatsoever.
11.4 No interest shall be payable by ONGC for the sum deposited as security deposit.
11.5 The security deposit shall be refunded after the expiry of the period of liability as
stipulated in the contract and the work is over to the full satisfaction of Engineer-in-
charge as per specifications.
12.0 FORFEITURE OF SECURITY DEPOSIT/ BANK GUARANTEE: -
12.1 The ONGC shall have an unqualified option to claim the amount including liquidated
damages from the Security deposit or Performance Guarantee in the event of
contractor failing to honour any of the commitments enter into under the
Agreement and/or in respect of any amount due to the ONGC from the Contractor.
In case, the ONGC is obliged to make any recoveries on any account under the
contract from the security deposit of the contractor, the contractor shall be obliged
72 | P a g e
to make good of the security deposit amount within a period of 10 days after the
receipt of information in this regard, failing which the contractor has to pay 20% per
annum interest for the period of delay in making the good of security deposit.
13.0 TIME PERIOD OF THE CONTRACT: -
13.1 This Contract shall remain valid for a period of six month from the date of
placement of LOA / LOI
14.0 PERIOD OF LIABILITY: -
14.1 The period of liability shall mean the entire Contract Period including any extension
thereof and the Warranty Period as mentioned in Guarantee Clause No. 1.14.
15.0 DISCIPLINE: -
15.1 CONTRACTOR shall carry out operations hereunder with due diligence and in a safe
and workman like manner according to good international oilfield practice.
CONTRACTOR shall maintain strict discipline and good CONTRACT among its
employees and its SUB-Contractor’s employees and shall abide by and conform to all
rules and regulations promulgated by the CORPORATION governing the operations.
Should CORPORATION feel that the conduct of any of CONTRACTOR/SUB-
Contractor’s employees is detrimental to Corporation’s interest, the CORPORATION
shall have the unqualified right to request for the removal of such employee either
for incompetence, unreliability, misbehavior, security reasons etc. while on or off the
job. The CONTRACTOR shall comply with any such request to remove such
personnel at Contractor’s expense unconditionally. The CONTRACTOR will be
allowed a maximum of 2 working days to replace the person by competent qualified
person at Contractor’s cost.
16.0 SAFETY AND LABOUR LAWS:-
16.1 CONTRACTOR shall comply with the provision of all laws including Labour Laws,
rules, regulations and notifications issued there under from time to time. All safety
and labour laws enforced by statutory agencies and by ONGC shall be applicable in
the performance of this CONTRACT and CONTRACTOR shall abide by these laws.
73 | P a g e
16.2 CONTRACTOR shall take all measures necessary or proper to protect the personnel,
work and facilities and shall observe all reasonable safety rules and instructions. No
smoking shall be permitted out side the living quarters, and welding jobs will be
carried out with full safety precautions. ONGC’s employee also shall comply with
safety procedures/policy.
16.3 The CONTRACTOR shall report as soon as possible any evidence which may indicate
or is likely to lead to an abnormal or dangerous situation and shall take all necessary
emergency control steps to avoid such abnormal situations.
17.0 SECRECY: -
17.1 CONTRACTOR shall during the tenure of the CONTRACT and at anytime thereafter
maintain in the strictest confidence all information relating to the work and shall not,
unless so authorized in writing by corporation, divulge or grant access to any
information about the work or its results and shall prevent anyone becoming
acquainted with either through CONTRACTOR or its personnel or authorized SUB-
Contractors or agents. CONTRACTOR shall not avail of the information obtained in
the course of work hereunder in any manner, whatsoever, nor shall CONTRACTOR
divulge any information about the location of the work area of part thereof.
CONTRACTOR shall not also destroy any report, note and technical data relating to
the operation/ work and not required by the CORPORATION. The obligation is
continuing one and shall survive after the completion/ termination of this
agreement.
18.0 STATUTORY REQUIREMENTS: -
18.1 During the tenure of this CONTRACT nothing shall be done by the CONTRACTOR in
contravention of any law, act and/or rules/regulations, there under or any
amendment thereof governing interallia customs stowaways, foreign exchange etc.
19.0 INSURANCE: -
19.1 The contractor shall at his own expenses carry and maintain insurance with
reputable insurance companies to the satisfaction of ONGC as follows. The
contractor shall make the insurance to cover all his workers for the entire contract
period. Gate passes will be issued on submission of insurance coverage policy in
favor of workers deployed by contractor.
19.2 Employees state insurance act:
74 | P a g e
The contractor agrees to and does here by accept full and exclusive liability for the
compliance with all obligations imposed by the employees state insurance act, 1948,
and the contractor further agrees to defend, indemnify and hold the ONGC harmless
from any liability or penalty which may be imposed by the central, state or local
authority by the reason of any ascertained violation by the contractor or sub
contractor of the employee state insurance act, 1948, and also from all claims, suits
or proceedings that may be brought against the ONGC arising under growing out of
or by reason of the work provided for this contract whether brought by employees
of the contractor, by third parties or by Central or state government authority or any
political sub division thereof.
The contractor agrees to fill in with the employee state insurance corporation, the
declaration forms and all forms which may be required in respect of the contractors
or sub-contractors employees, who are employed in the work provided for or those
covered by ESI from time to time under the agreement of the sub contractor to
deduct the employee’s contribution as per the first schedule of the employees state
insurance act from wages and affix the employees contribution cards at wages
payments intervals. The contractor shall remit and secure the agreement of the sub-
contractor to result to the state bank of India, employees state insurance
corporation account, the employees contribution as required by the act. The
contractor agrees to maintain all cards and records as required under the act in
respect of employee and payments and such records. Any expenses incurred for the
contributions, making contributions or maintaining records shall be to the
contractors or sub-contractors account.
The ONGC shall retain such sum as be necessary from the total contract value until
the contractor shall furnish satisfactory proof that the contributions as reward by the
employees state insurance act 1948, have been paid.
19.3 Workmen’s Compensation and Employers liability insurance: -
Insurance shall be affected for all the contractors’ employees engaged in the
performance of this contract. If any of this work is sublet, the contractor shall
required the sub contractor to provide Workmen’s Compensation and Employers
liability insurance for the later employees, if such employee are not covered under
the contractors insurance.
Any other insurance required under the law or regulation or by ONGC.
75 | P a g e
Contractor shall also carry and maintain any and all other insurance, which he may
be required under any law or regulation from time to time.
19.4 Accident or injury to workman:
The ONGC shall not be liable for or in respect of any damage or compensation
payable at law in respect or in consequence of any accident or injury to any
workman or other person in the employment of the contractor or any sub contractor
save and except an accident or injury resulting from any act or the default of the
ONGC, his agents or servants and the contractor shall indemnify and keep
indemnified the ONGC against all such damages and compensation (save except as
aforesaid) and against all claims, demands, proceedings, costs, charges, and
expenses what so ever in respect or in relation thereto.
19.5 Transit insurance:
In respect of all items to be transported by the contractor to the site of work, the
cost of transit insurance should be borne by the contractor and the quoted price
shall be inclusive of this cost.
19.6 Third party liability insurance.
The contractor shall take “third party” liability insurance with suitable coverage so as
to indemnify the ONGC against all types of risks for the works being carried out by
the other agencies at the site.
19.7 Damage To The Property
The contract shall be responsible for asking good to the satisfaction of the Engineer-
in-charge any loss or any damage to all structure and properties belonging to the
corporation ltd or being executed or procured or being procured by the corporation
Ltd or of other agencies within the premises of all the work of the ONGC. If such loss
or damage is due to fault and / or willful acts or omission of the contractor, his
employee, agents, representative or sub contractor.
The contractor shall indemnify and keep the ONGC harmless of all claims for
damages to property other than of the ONGC property arising under or by reason of
this contract, if such claims result from the default and/ or negligence or willful acts
76 | P a g e
or omissions of the contractor, his employee, agents, representative or sub
contractor.
The ONGC is not liable for payment of any damages or loss incurred by the
contractor during execution of the work, including transportation and handling.
A) Contractor shall, at his own expense, arrange appropriate insurance to cover all risks
assumed by the CONTRACTOR under this CONTRACT in respect of its personnel
deputed under this CONTRACT as well as Contractor’s equipment, tools and any
other belongings of the CONTRACTOR or their personnel during the entire period of
their engagement in connection with this CONTRACT. ONGC will have no liability on
this account.
However, CONTRACTOR shall not be required to take insurance cover for their
equipment, tools when these are in the custody of ONGC.
(Amended as per Circular No 18/2004 Dated 29-03-2004 from Chief (MM), Dehradun).
B) Insurance by CONTRACTOR for Corporation’s existing property: -
CONTRACTOR shall take out insurance policies against all risks of loss or damage
caused to Corporation’s property comprising but not limited to all rotating /
stationary equipments, pipe lines, storage tanks farms or any process handling
equipments and tenders and other equipments for property owned or hired by
CORPORATION and the works and part of the works taken over by CORPORATION
however, caused by the CONTRACTOR or his authorized representatives, agent or
sub-Contractors upto the deductible amount under the Corporation’s assured
package policy in US$ per occurrence.
Notwithstanding anything contained in any provision of this CONTRACT, save as
specified above in this Clause CORPORATION shall defend, indemnify and hold
harmless from and against any losses, damages, cost or claims relating to
Corporation’s existing property except in case of gross negligence or willful
misconduct of the Contractor, its sub-contractor their agents or employees, in which
case the Contractor shall be liable to bear any loss or damage occurring to the
Property of the CORPORATION as a result of its gross negligence or willful
misconduct, provided however, that such liability shall be limited to 100% of the
CONTRACT Price.
77 | P a g e
“Gross Negligence” means: any act or failure to act (whether sole, joint or
concurrent) by a person or entity which was intended to cause, or which was in
reckless disregard of or wanton indifference to, avoidable and harmful consequences
such person or entity knew, or should have known, would result from such act or
failure to act. Notwithstanding the foregoing, Gross negligence shall not include any
action taken in good faith for the safeguard of life or property, “willful misconduct”
means: “intentional disregard of good and prudent standards of performance or
proper conduct under the CONTRACT with knowledge that it is likely to result in any
injury to any person or persons or loss or damage of property.
C) Waiver of subrogation: All insurance policies of the CONTRACTOR with respect to the
operations conducted hereunder as set forth in clause 13 hereof, shall be endorsed
by the underwriter in accordance with the following policy wording:-
“The insurers hereby waive their rights of subrogation against any individual,
CORPORATION, affiliates or assignees for whom or with whom the assured may be
operating to the extent of the Contractual indemnities undertaken by the
CONTRACTOR”.
D) Certificate of Insurance: Before commencing performance of the CONTRACT,
CONTRACTOR shall upon request furnish CORPORATION with certificates of
insurance indicating (1) kinds and amounts of insurance as required herein (2)
insurance CORPORATION or companies carrying the aforesaid coverage (3) effective
and expiry dates of policies (4) that CORPORATION shall be given thirty (30) days
written advance notice of any material change in the policy (5) waiver of subrogation
endorsement has been attached to all policies and (6) the territorial limits of all
policies. If any of the above policy expire or/ are cancelled during the term of this
CONTRACT and CONTRACTOR fails for any reason to renew such policies, then
CORPORATION may replace it and charge the cost thereof to CONTRACTOR. Should
there be lapse in any insurance required to be carried out by CONTRACTOR
hereunder for any reason, losses resulting there from shall be to the sole account of
the CONTRACTOR. Such insurance shall be affected within Insurance Company
incorporated and registered in India or jointly with Company of International repute
and an Insurance Company incorporated and registered in India.
78 | P a g e
E) Deductible: - That portion of any loss not covered by insurance provided for in this
article.. Solely by reason of deductible provision in such insurance policies shall be to
the account of the CONTRACTOR.
F) CONTRACTOR shall require all of its SUB-Contractors to provide such of the foregoing
insurance cover as the CONTRACTOR is obligated to provide under this CONTRACT.
20.0 INDEMNITY AGREEMENT:
20.1 INDEMNITY BY CONTRACTOR:
CONTRACTOR shall indemnify and keep indemnified CORPORATION, its contractors
(other than the CONTRACTOR) and/or sub-contractors and its/their employees from
all actions, proceedings suits, claims, demands, liabilities, damages, losses, costs,
charges, expenses (including without limitation, wreck or debris, removal costs,
where wreck or debris removal is ordered by a competent authority) judgments and
fines arising out of or in the course of or caused by the execution of work under the
CONTRACT or other obligations hereunder directly or indirectly associated herewith
including but not limited to :
a) Personal injury, illness or death of:
i) Any of Contractor’s or subcontractor’s personnel (even if caused by or
contributed to by the negligence or fault of Contractor); and
ii) Subject to clause 21.1 (a) (I) any other person to the extent the injury, illness
or death is caused by the negligence or fault of the Contractor or Contractor’s
personnel or subcontractors or subcontractor’s personnel and
b) Loss or damage to:
i) Any property owned, hired or supplied by Contractor or Contractor’s
personnel or subcontractors or subcontractor’s personnel including
Constructional Plant (even if caused by, or contributed to by, the negligence
or fault of CORPORATION); or
ii) Subject to clause 21.1 (b) (I) any other property to the extent the loss or
damage is caused by the negligence or fault of the Contractor or Contractor’s
personnel or subcontractors or subcontractor’s personnel.
79 | P a g e
INDEMNITY BY CORPORATION:
CORPORATION shall indemnify and keep indemnified CONTRACTOR (which
expression in this clause includes, unless the context otherwise requires.
Subcontractors of any tier and their employees) from all actions, proceedings, suits,
claims, demands, liabilities, damages, losses, costs, charges, expenses and fines
arising from:
a) Personal injury, illness or death of
i) Any employee of the CORPORATION (even if caused by or contributed to by
the negligence or fault of Contractor);
ii) Subject to clause 20.1 (a) (I) any other person to the extent that the injury,
illness or death is caused by the negligence or fault of CORPORATION; and
b) Any loss or damage to:
i) Any property owned, hired or supplied by CORPORATION (even if caused by
or contributed to by the negligence or fault of Contractor); except to the
extent that such property is in the care or custody of Contractor in
connection with the work under the Contract.
ii) Subject to clause 20.1 (b) (I) any loss or damage to any other property to the
extent the loss or damage is caused by the negligence or fault of
CORPORATION.
21.0 TERMINATION
21.1 Termination on expiry of the CONTRACT
This Agreement shall be deemed to have been automatically terminated on the
expiry of the CONTRACT period unless the ONGC has exercised its option to extend
this CONTRACT in accordance with the provisions, if any, of this CONTRACT.
21.2 Termination on account of Force Majure
80 | P a g e
Either party shall have the right to terminate this CONTRACT on account of Force
Majeure, as set forth in Clause No. 27.
21.3 Termination on account of insolvency
In the event the CONTRACTOR or its collaborator at any time during the term of this
Agreement becomes insolvent or makes a voluntary assignment of its assets for the
benefit of creditors or is adjudged bankrupt, then the ONGC shall, by a notice in
Writing have the right to terminate this CONTRACT and all the Contractor’s rights
and privileges hereunder, shall stand terminated forthwith.
21.4 Termination for unsatisfactory performance
If the ONGC considers that the performance of the CONTRACTOR is unsatisfactory
or, not upto the expected standard, the ONGC shall notify the CONTRACTOR in
writing and specify in detail the cause of such dissatisfaction. The ONGC shall have
the option to terminate this Agreement by giving 10 days notice in writing to the
CONTRACTOR, if, CONTRACTOR fails to comply with the requisitions contained in the
said written notice issued by the ONGC.
21.5 Termination for delay in mobilization
Successful bidder shall be required to mobilize complete equipment along with crew
(only crew in case of Operation and Maintenance Contracts) for commencement of
services at the specified site within a maximum of 15 days from the date of Fax order
/ LOI / NOA. If the CONTRACTOR (successful bidder) fails to mobilize as above, the
CONTRACT shall automatically stand terminated unless CORPORATION has extended
the mobilization period with levy of Liquidated Damages, as per Clause 24.0
21.6 Termination at the sole discretion of ONGC:
Notwithstanding anything herein, the ONGC may at its sole discretion terminate this
contract by giving to the contractor thirty (30) days notice to that effect without
assigning any reasons whatsoever.
21.7 CONSEQUENCES OF TERMINATION
In all cases of termination herein set forth, the obligation of the ONGC to pay shall be
81 | P a g e
limited to the period upto the date of termination. Notwithstanding the termination
of this Agreement, the parties shall continue to be bound by the provisions of this
Agreement that reasonably require some action or forbearance after such
termination.
In case of termination of CONTRACT herein set forth except under 22.1 and 22.2, the
CONTRACTOR shall be put on holiday [i.e. neither any enquiry will be issued to the
party by ONGC against any type of tender nor their offer will be considered by
CORPORATION against any ongoing tender(s) where contract between
CORPORATION and that particular CONTRACTOR (as a bidder) has not been finalized]
for two years from the date of termination by CORPORATION to such CONTRACTOR.
22.0 SEVERABILITY:
Should any provision of this agreement be found to be invalid, illegal or otherwise
not enforceable by any court of law, such finding shall not affect the remaining
provisions hereto and they shall remain binding on the parties hereto.
23.0 CONSEQUENTIAL DAMAGES:
Notwithstanding either party’s fault, neither party shall be liable to the other party in
respect of any consequential damages whatsoever. The term “Consequential
damages” as used herein shall include without limitations to the meaning, loss of
profit, production, business opportunities or use of assets.
24.0 LIQUIDATED DAMAGES:
24.1 If the Contractor fails to complete the work as provided in the Agreement within the
period fixed/agreed in the work schedule, or at any time repudiates the contract, the
ONGC without prejudice to any other right or remedy available, may at its discretion:
a. Recover from the Contractor as ascertained and agreed liquidated damages, and
not by way of penalty a sum calculated at the rate of 1/2% (half percent) per
week or part thereof delay on the total value of the work delayed subject to a
maximum of 10% of the total value of the work allotted.
AND/ OR
82 | P a g e
b. Arrange for the work and or part of the work in default by the contractor to be
carried out by any other contractor/party by giving notice to the contractor on
the account and at the sole risk and cost of the contractor. Such decisions of the
ONGC will be final and binding on the contractor. The ONGC in such cases may
terminate the contract.
AND/ OR
c. Terminate the contract and or a portion or part of the work thereof and if so
desired arrange the work in default by the Contractor to be carried out by any
other party at contractor’s sole risk and cost where action is taken under sub
clause (b) and/ or sub clause (c) above, Contractor shall be liable for all losses
which ONGC may sustain on this account, provided the said work or part of the
work in default by the contractor is assigned to any other party at any time
within one month from the date of such failure and in case of repudiation of the
Contract before expiry of the aforesaid period of completion at any time within
six months from the date of termination of the Contract. The Contractor shall
not be entitled to any gain on such alternative arrangement and manner and
method of making such alternative arrangement shall be at the discretion of the
ONGC with a notice of 24 hours.
24.2 In the event of the ONGC, because of circumstances beyond its control, cannot
provide the materials as agreed in the contract, the Contractor shall only be entitled
for extension in time limit and such extension shall not entitles the Contractor for
any compensation or payment of whatsoever nature.
24.3 In the event of ONGC because of circumstances beyond its control, cannot make
available/provide the number of equipment for the execution of the work, it will not
be binding on the ONGC, for the payment of any losses incurred or claimed
whatsoever by the Contractor.
25.0 CHANGE IN LAW:
In the event of any change or amendment of any Act or law, Rules or Regulations of
Govt. of India or Public Body or any change in the interpretation or enforcement of
any said Act or law, rules or regulations by Indian Govt. or public body which
becomes effective after the date as advised by the ONGC for submission of final
price bid for this CONTRACT and which results in increased cost of the works under
the CONTRACT through increased liability of taxes, (other than personnel and
83 | P a g e
Corporate taxes), duties, the CONTRACTOR shall be indemnified for any such
increased cost by the ONGC subject to the production of documentary proof to the
satisfaction of the ONGC to the extent which is attributable to such change or
amendment as mentioned above.
Similarly, if any change or amendment of any Act or Law including Indian Income Tax
Act, Rules or regulations of any Govt. or public body or any change in the
interpretation or enforcement of any said Act or Law, rules or regulations by Indian
Govt. or public body becomes effective after the date as advised by the ONGC for
submission of final price bid of this CONTRACT and which results in any decrease in
the cost of the project through reduced liability of taxes, (other than personnel and
Corporate taxes) duties, the CONTRACTOR shall pass on the benefits of such reduced
cost, taxes or duties to the CORPORATION.
Notwithstanding the above mentioned provisions, CORPORATION shall not bear any
liability in respect of (I) Personnel taxes on the employees of CONTRACTOR and the
employees of all its SUB-Contractors etc. (ii) Corporate taxes in respect of the
CONTRACTOR and its SUB-Contractors etc.
26.0 LIABILITY OF THE GOVERNMENT OF INDIA: -
It is expressly understood and agreed by and between the CONTRACTOR and ONGC
(the Indian PSU) that ONGC is entering into this agreement solely on its own behalf
and not on behalf of any other person or entity. In particular, it is expressly
understood and agreed that the Govt. of India is not a party to this agreement and
has no liabilities, obligations or rights hereunder. It is expressly understood and
agreed that ONGC is an independent legal entity with power and authority to enter
into Contracts solely in its behalf under the applicable laws of India and general
principles of CONTRACT Law. The CONTRACTOR expressly agrees, acknowledges and
understands that ONGC is not an agent, representative or delegate of the Govt. of
India. It is further understood and agreed that the Govt. of India is not and shall not
be liable for any acts, omissions, and commission, breaches or other wrongs arising
out of the CONTRACT. Accordingly, CONTRACTOR hereby expressly waives, releases
and forgoes any and all actions or claims, including cross claims, imp leader claims or
counter claims against the Govt. of India arising out of this CONTRACT and covenants
not to the Govt. of India as to any manner, claim, cause of action or thing
whatsoever arising of under this CONTRACT
84 | P a g e
27.0 FORCE MAJEURE:
In the event of either party being rendered unable by Force Majeure to perform any
obligation required to be performed by them under the CONTRACT, the
relative obligation of the party affected by such Force Majeure shall be suspended
for the period during which such cause lasts.
The term “Force Majeure" as employed herein shall mean acts of God, War, Civil
Riots, Fire directly affecting the performance of the CONTRACT, Flood and Acts and
Regulations of respective government of the two parties, namely ONGC and the
CONTRACTOR.
Upon the occurrence of such cause and upon its termination, the party alleging that
it has been rendered unable as aforesaid thereby, shall notify the other party in
writing, the beginning of the cause amounting to Force Majeure as also the ending of
the said clause by giving notice to the other party within 72 hours of the ending of
the cause respectively. If deliveries are suspended by Force Majeure conditions
lasting for more than 2 (two) months, ONGC shall have the option of canceling this
CONTRACT in whole or part at his discretion without any liability at his part.
Time for performance of the relative obligation suspended by Force Majeure shall
then stand extended by the period for which such cause lasts.
28.0 EMPLOYMENT BY FIRMS TO OFFICIALS OF ONGC
Firms/companies who have or had business relations with ONGC are advised not to
employ serving ONGC employees without prior permission. It is also advised not to
employ ex-personnel of ONGC within the initial two years period after their
retirement/resignation/severance from the service without specific permission of
ONGC. The ONGC may decide not to deal with such firm(s) who fails to comply with
the above advice.
29.0 PREFERENCE TO LOCAL COMPANIES:-
CONTRACTOR agrees to give priority and preference to locally owned companies,
when hiring Sub CONTRACTOR, SUBJECT TO price, quality and delivery being
equivalent.
85 | P a g e
30.0 JURISDICTION AND APPLICABLE LAW:-
This Agreement including all matter connected with this Agreement, shall be
governed by the laws of India (both substantive and procedural) for the time being
in force and shall be subject to exclusive jurisdiction of the Indian Courts (the place
where the CONTRACT is signed in India). Foreign companies, operating in India or
entering into Joint ventures in India, shall have to obey the law of the Land and there
shall be no compromise or excuse for the ignorance of the Indian legal system in any
way.
All questions, disputes or differences arising under, out of or in connection with the
agreement shall be subject to the exclusive jurisdiction of the Courts of Mumbai
only.
31.0 ARBITRATION:
31.1 (Applicable for Indigenous contracts upto Rs. 1 Crores)
Except as otherwise provided elsewhere in the CONTRACT if any dispute, difference,
question or disagreement arises between the parties hereto or the respective
representatives or assignees, at any time in connection with construction, meaning,
operation, effect, interpretation or out of the CONTRACT or breach thereof the same
shall be referred to Arbitration of Sole Arbitrator appointed by the Director of ONGC.
It is also agreed that there will be no objection for appointment of an employee of
ONGC as Sole Arbitrator who also holds shares of ONGC.
Appointment of Arbitrator shall be made within 30 days of the receipt of the
arbitration notice.
If the Arbitrator so appointed dies, resigns, incapacitated or withdraws for any
reason from the proceedings, it shall be lawful for the Director of ONGC to appoint
another person in his place in the same manner as aforesaid. Such person shall
proceed with the reference from the stage where his predecessor had left if both
parties consent for the same; otherwise, he shall preceded novo.
86 | P a g e
It is a term of the CONTRACT that the party invoking arbitration shall specify all
disputes to be referred to arbitration at the time of invocation of arbitration and not
thereafter.
It is also a term of the CONTRACT that neither party to the CONTRACT shall be
entitled for any ante-lite (pre-reference) or pendente-lite interest on the amount of
the award.
The Arbitrator shall give reasoned award and the same shall be final, conclusive and
binding on the parties.
The venue of the arbitration shall be the place from where the purchase order /
CONTRACT has been placed / made.
It is a term of the CONTRACT that the cost of the arbitration will be borne by the
parties in equal shares.
Subject to as aforesaid, the provisions of Arbitration and Conciliation Act 1996 and
any statutory modifications or re-enactment in lieu thereof shall apply to the
arbitration proceedings under this clause.
31.2 (Applicable in case of CONTRACT on Public Sector Enterprises)
In the event of any dispute or difference relating to, arising from or connected with
the CONTRACT, such dispute or difference shall be referred by either party to the
arbitration of one of the Arbitrators in the Department of Public Enterprises, to be
nominated by the Secretary to the Government of India, In-charge of the Bureau of
Public Enterprises. The Arbitration and Conciliation Act 1996 shall not be applicable
to the Arbitration under this clause. The award of the Arbitrator shall be binding
upon the parties to the dispute, provided however; any party aggrieved by such
award may make a further reference for setting aside or revision of the award to the
Law Secretary, Deptt. of Legal Affairs, Ministry of Law and Justice, Government of
India. Upon such reference, the dispute shall be decided by the Law Secretary or the
Special Secretary / Additional Secretary, whose decision shall bind the parties finally
and conclusively. The parties in the dispute will share equally the cost of the
arbitration as intimated by the Arbitrator.
32.0 LABOUR LAWS ARBITRATION AND OTHER LEGAL MATTERS
87 | P a g e
32.1 Before deploying the persons inside the plant, you will furnish complete bio-data
including qualifications, experience, their permanent and temporary address.
32.2 After the contract is awarded, the contractor should be required to produce license
under Contractor Labour (Regulation & Abolition) Act, 1970, before commencement
of work. Form-V required for obtaining the labour licence shall be issued along with
the LOI.
32.3 Contractor should hire the workers in Maharashtra State only. If he recruits the
workmen from outside the Maharashtra State for employment in Maharashtra, he
should get the firm registered under Inter-State Migrant Workmen (Regulation of
Employment & Conditions of Service) Act, 1979 and Central Rules, 1980.
33.0 OBSERVANCES OF LABOUR LAWS
33.1 The contractor shall observe and abide by all Labour Laws, Rules and Regulations
prevailing in the country including Contract Labour (R&A) and Minimum Wages Act,
etc. And shall keep ONGC harmless and indemnified against any action or for any
violation or non-compliance of any Act, etc.
SOME IMPORTANT LABOUR LAWS AND REGULATIONS
33.2 No labourers below the age of eighteen years shall be employed on the work.
34.0 PAYMENT OF WAGES TO LABOURERS
34.1 The contractor shall pay fair wages to his workmen but in no case be less than the
wages prescribed by the appropriate Government under the Minimum Wages Act,
1948, for the scheduled industry as applicable to ONGC. In addition, he will provide
statutory benefits such as PF, ESI, leave with wages and bonus to workmen, as per
relevant Labour Laws as amended from time to time. ONGC shall not admit any claim
whatsoever in regard to wages and other statutory benefits and the contractor shall
solely be liable to pay the wages and other service conditions/statutory benefits, as
prevalent from time to time, to his workmen.
34.2 The contractor shall comply with all laws/rules including but not limiting to
Contractor Labour (R&A) Act, 1970, Minimum Wages Act, Payment of Wages Act,
88 | P a g e
Workmen Compensation Act, Fire Safety Regulations, etc. And shall keep ONGC
harmless and indemnified against any action brought against ONGC for any violation
or non compliance of any Acts, Rules, etc., by him.
34.3 For those workmen who are not covered under ESI Act, the contractor shall take
appropriate insurance policy and submit a copy of the same to ONGC.
34.4 The bills without documents towards proof of having deposited the contribution of
PF and ESI with concerned authorities in respect of his workmen engaged on the job
and proof of monthly payment to the workers, for the preceding month, shall not be
entertained for payment and ONGC shall not be responsible for any delay on this
account.
34.5 In respect of all labour directly or indirectly employed in the works for performance
of contractor’s part of this agreement the contractor shall comply with or cause to
be complied with Contractor’s Labour Regulations made by the ONGC from time to
time in regard to payment of wages, wage period, deductions from wages, recovery
of wages not paid and deductions unauthorized made, maintenance of wage books,
wage slips publication of scale of wages and other terns of employment inspection
and submission of periodical returns and all other matters of a like nature. Every
worker shall be given a paid weekly holiday normally on Sunday in accordance with
the provision of the Minimum Wages (Central) Rules, 1950, as amended from time
to time irrespective of whether such worker is governed by the Minimum Wages Act,
1948, or not.
34.6 The engineer-in-charge shall have the right to deduct from the moneys due to the
contractor any sum required or estimated to be required for making good the loss
suffered by a worker or workers by reason of non-fulfillment of the conditions of the
contract for the benefit of workers, nonpayment of wages or of deductions made
from his or their wages which are not justified by their terms of the contract or non-
observance of the regulation.
34.7 Under the provisions of Minimum Wages Act, 1948 and the Minimum Wages
(Central) Rules, 1950 the contractor is bound to allow or causes to be allowed to the
laborers directly or indirectly employed in the works one day rest for six days
continuous work and pay wages at the same rates as for duty. In the event of default
the engineer-in-charge shall have the right to deduct the sum or sums not paid on
89 | P a g e
account of wages for weekly holiday to any labourers, and pay the same to the
persons entitles thereto from any money due to the contractor.
34.8 Vis-à-vis the ONGC and the contractor shall be primarily liable to all payments to be
made there under, and for the observance of the provisions aforesaid without
prejudice to his right to claim indemnity to his sub-contractors.
34.9 The regulations aforesaid shall be deemed to be a part of this contract and any
breach thereof shall be deemed to be beach of this contract.
34.10 In respect of all labour directly or indirectly employed in the work for the
performance of the contractor’s part of this agreement the contractor shall at his
own expenses arrange from time to time and shall at his own expenses provide for
all the facilities in connection therewith. In case the contractor fails to make
arrangement and provide necessary facilities as aforesaid he shall be liable to
penalty of Rs. 50/- for each default and in addition the engineer-in-charge shall be at
liberty to make arrangement and provide facilities as aforesaid and recover the costs
incurred in that behalf from the contractor.
34.11 In the event of contractor (s) committing a default or breach of any of the provisions
of the ONGC Contractor’s Labour Regulation and Model Rules for the protection of
health and sanitary arrangements for his workers as amended from to time or
furnishing information or submitting or filling any statement under the provisions of
the regulations and rules which is materially incorrect, he/they shall without
prejudice to any other liability pay to the ONGC a sum not exceeding Rs. 50/- for
every default, breach or furnishing, making, submitting, filling such materially
incorrect statements and in the event of the contractors defaulting, continuously in
this respect, the penalty may be enhanced to Rs. 50/- per day for each day of default
subject to a maximum of 5% of the estimated cost of the work awarded. The
decision of engineer-in-charge shall be final and binding on the parties.
34.12 In respect of all workers employed directly or indirectly in the work for the
performance of the contractor’s part of this agreement the contractor shall at his
own expenses arrange for the medical fitness certificate for each employee from a
registered medical practitioner, if any time asked by Engineer-in-Charge.
34.13 Section 97, III and 3(1) of the Factory Act, 1948 and the Workmen Compensation Act,
1923 respectively are to be followed strictly and being detailed as below:
90 | P a g e
34.14 Section 97 (Offence by worker) of the Factory Act says that:
i) Subject to the provisions of section III, if any worker employed in a factory
contravenes any provisions of this Act of any Rule or orders made there under,
imposing any duty or liability on workers, he shall be punishable with fine which
may extend to Rs. Five hundred.
ii) Where a worker is convicted of an offence punishable under section (1) the
occupier or manager of the factory shall not be deemed to be guilty of an
offence in respect of that contravention, unless it is proved that he failed to take
all reasonable measures for its prevention.
34.15 Section III (Obligation of Worker)
i) No worker in a factory:
 Shall willfully interfere with or misuse any appliance, convenience or other
things provided in the factory for the purpose of securing the health, safety
or welfare of the workers therein.
 Shall willfully and without reasonable cause do anything likely to endanger
himself or others.
 Shall willfully neglect to make use of any appliance or other thing provided
in the factory for the purpose of securing the health of safety of the
workers therein.
ii) If any worker employed in a factory contrivances any of the provision of section
or of any rule or order made there under, he shall be punishable with
imprisonment for a term which may extend to tree months, or with fine which
may extend to Rs. 100/- (rupees one hundred only) or with both.
34.16 Section 3(1) in chapter II of the Workmen’s Compensation Act, 1923.
If personal injury is caused to a workman by accident arising out of and in the course
of his employment, his employer shall be liable to pay compensation in accordance
with the provisions of this chapter. Provided that the employer shall not be so liable:
i) in respect of any injury which does not result in the total or partial disablement
of worker for a period exceeding three days.
91 | P a g e
ii) In respect of (injury resulting in death, caused by) an accident which is directly
attributed to:
 the workman having been at time there of under influence of drink or
drugs;
OR
 the willful disobedience of the workman to an order expressly given or to a
rule expressly formed for the purpose of securing the safety of the
workman;
OR
 the willful removal or disregard by the workman of any safety guard or
other device which is known to have been provided for the purpose of
securing the safety of workman.
34.17 The contractor should obtain the requisite licence for undertaking the job on
contract from the respective labour authorities and produce a copy of the same to
ONGC.
35.0 GOVT. DIRECTIVES ON EMPLOYMENT OF LABOUR
The contractor shall follow the directives of Govt. of India regarding implementation
of reservation in respect of SC/ST personnel in terms of employment for the job
awarded.
36.0 CONTINUANCE OF THE CONTRACT: -
Notwithstanding the fact that settlement of dispute(s) (if any) under arbitration may
be pending, the parties hereto shall continue to be governed by and perform the
work in accordance with the provisions under this CONTRACT.
37.0 INTERPRETATION: -
The titles and headings of the sections in this CONTRACT are inserted for convenient
reference only and shall not be construed and limiting or extending the meaning of
any provisions of this CONTRACT.
38.0 ENTIRE AGREEMENT: -
This Agreement supersedes all prior Agreements and commitments, whether oral or
in writing between the parties concerning the subject matters thereof. The right of
either party to require strict performances will not be affected by any previous
waiver or course of dealing. Neither this Agreement nor any modification will be
92 | P a g e
binding on a party unless signed by an authorized representative of CONTRACTOR
and ONGC.
39.0 SITE POLLUTION RESPONSIBILITY
In the performance of any and all services and the works hereunder by the
contractor or his sub-contractors, the Contract shall accept full responsibility for
compliance with all applicable laws and government orders, rules and regulations
with as amended/ in force from time to time relating to pollution. Contractor and his
sub-contractor(s) shall also comply with additional provisions as may be notified to
the contractor by the Corporation without in any way limiting the generalist of the
preceding sentences, it is specifically agreed that the Contractor shall comply with
the following.
i) Solid waste, such as tins, bottles, or any from of trash, must be transported to
from the site to place decided by Corporation and the cost to be borne by
Contractor.
ii) Solid combustible waste must be transported from site to place decided by
Corporation & the cost to be borne by Contractor.
iii) The Contractor agrees to inform and his supervisors of such laws, orders and
regulations and to make all his employees and the sub-contractor fully
cognizant of their responsibilities there under.
The Corporation’s Representative may discuss interpretations and applications of the
laws, orders and regulations referred above with the Contractor’s Representative or
site superintend but such discussions shall not in any way relieve the Contractor of
his responsibility hereunder. In addition and without in any way limiting, restricting
or prejudicing any of the Corporation’s other rights and remedies, whether arising
under nay other provisions of this contract or under any rule of law, the contractor
shall;
i) Clean up and remove any pollution resulting from its non-compliance with the
provisions of this Section, at his cost and expense, and
ii) If the Contractor falls to do so, the Corporation may clean up and remove the
pollution in such case the Contractor shall reimburse the Corporation upon
receipt of bills from the Corporation for the cost of such clean up and removal.
40.0 LIMITATION OF LIABILITY, IN TURNKEY AND SERVICE CONTRACTS
93 | P a g e
Not with standing any other provisions, except only in cases of willful misconduct and
/ or criminal acts,
a) Neither the contractor nor the company (ONGC) shall be liable to the other, whether
in contract, tort, or otherwise, for any consequential loss or damage, loss of use, loss
of production, or loss of profits or interest costs, provided however that this
exclusion shall not apply to any obligation of the contractor to pay liquidated
damages to the company and
b) Not with standing any other provisions incorporated elsewhere in the contract, the
aggregate Liability of the contractor in respect of this contract, whether under the
contract, in tort or otherwise, shall not exceed the total contract price, provided
however that this limitation shall not apply to the cost of repairing or replacing
defective equipment by the contractor, or to any obligation of the contractor to
indemnify the company with respect to intellectual property rights.
c) Company shall indemnify and keep indemnified contractor harmless from and
against any and all claims, costs, losses and liabilities in excess of the aggregate
liability amount in terms of clause (b) above.
A. GENERAL OBLIGATIONS
1.0 CONTRACTOR’S OBLIGATIONS
1.1. All the tools & tackles required for the job shall be provided by the contractor. The
contractor shall be solely responsible for safe custody of his tools and tackles..
1.2. All the work men engaged by the contract agency should be physically fit, should
have sound mind and should possess good conduct and discipline.
1.3. The work is to be carried out in “ RESTRICTED AREA and successful bidder will have
to work as per instructions of Engineer-in-charge & should obtain permission in
standard format for every employee working for him who are liable for physical
check by competent authority as decided by Engineer-in-charge at any time.
1.4. After completing every maintenance activity, the contractor shall shift the unused
spares / consumables to the designated areas under the supervision of Engineer-in-
charge or his authorized representative.
94 | P a g e
1.5. Transport facilities for successful bidder personnel for carrying out the work at site is
to be made and borne by the successful bidder at his cost.
1.6. Contractor shall provide boarding and lodging facility to his personnel for carrying
out the subject job. ONGC will not be responsible for the same.
1.7. Contractor will have to provide cotton uniforms, safety shoes & other safety items
like cotton hand gloves, helmets etc. to their persons at their own cost while at work
in the Plant Premises.
1.8. Persons without kits and liveries mentioned above will not be allowed inside the
plant.
1.9. Contractor has to arrange, for attending the all left over jobs or leakage etc if any.
B WASTE MANAGEMENT & HOUSEKEEPING:
a) Waste management during execution contract shall be the responsibility of the
contractor.
b) A suitable person shall be identified / designated by the contractor for all activities
related to waste management in the contract.
c) The contractor shall maintain proper housekeeping in the work area in order to
ensure safety and good working environment. It should ensure that work area is kept
clean at the end of work.
d) Contractor’s equipments, tools & tackles should not cause hindrance in the escape
route in case of emergency.
e) Contractor while working in the plant area shall ensure that their activities do not
contravene with the Environment Protection Act 1986.
f) Contractor shall provide dust bins (as per colour coding) to ensure that all scraps,
rubbish, oil rags, cotton waste, debris, etc. generated are kept secure.
g) Waste materials to be segregated with respect to hazardous waste, used Batteries,
Biomedical waste, Chemicals, E-waste and Municipal Solid Waste be kept in the
appropriate containers kept at designated places in the plant.
95 | P a g e
h) Contractor shall be ensure that they may follow all the waste management rules like
Municipal Solid Wastes (Management and Handling) Rules 2000, Hazardous Wastes
(Management, Handling and Tran boundary Movement) Rules 2008, E-waste
Management and Handling Rules 2011, The Plastics (Manufacture, Usage and Waste
Management) Rules 2009, The Batteries (Management and Handling) Rules, 2001,
The Bio-Medical Waste (Management and Handling) Rules 1998 where ever
applicable.
i) Any violation observed in the above requirements, during execution, engineer-in
charge shall make a deduction of Rs 500 for each occasion.
2.0 MATERIAL / FACILITIES PROVIDED BY ONGC
2.1 The transportation / shifting of material from stores (at Uran) or other areas within
the plant premises shall be done by the contractor without any extra cost.
2.2 Air, electricity and water will be supplied by ONGC free of cost at one point.
2.3 Each equipment will be handed over to the contractor after taking all the safety
precautions as per ONGC norms.
2.4 Specialized nature safety equipment if any will be provided by ONGC. The contractor
shall be responsible for its safe use and shall return upon completion of job.
2.5 In case of accident, only first aid facility will be provided by ONGC at Uran Plant but
contractor is also requested to make arrangement of FIRST AID facilities for his
employees. Also, in case of accident transport facility to the nearest hospital may be
provided by ONGC depending upon the availability.
2.6 Cranes, Trucks, etc. required for the job as decided by Engineer-in-charge, shall be
arranged by the Contractor within plant premises at his / her own cost.
96 | P a g e
SAFETY AND SECURITY CODE FOR ONGC
The purpose of the safety code is to safeguard against the mishap and damage to the men,
material and machinery while carrying out the work in ONGC area associated satellite
stations. The contractor must adhere to the code to ensure complete safety.
1. No smoking shall be permitted. Carrying matches or lighters inside the ONGC area is
strictly prohibited. These must be deposited at Main Gate with CISF.
2. Entry of automotive vehicles within plant premises is prohibited unless authorized by
Fire & Safety Permit issued by competent authority.
3. No work in ONGC area to be carried out unless authorized by work permit issued by
competent authority.
4. No hot works, which produce open flame, sparks or any ignition source etc. is carried
out in the ONGC area unless such work is authorized by Fire & Safety Permit issued
by competent authority.
5. It will be the responsibility of the contractor to see that specialized safety appliances
supplied by the company are used with care. Any damage to such equipment will be
recovered from the contractor.
6. Contractor must comply with ONGC’s procedure of ‘Injury reporting’. A report in this
connection must reach in time to concerned authority of ONGC for further action.
7. Contractor’s worker shall not tamper or interfere with any machine or equipment in
the operating area. He should use, adjust and repair equipment only when
authorized. Never meddle with switches, controls, levers, valves, etc.
8. Strict compliance with all plant safety rules, cautionary sign and verbal safety
instructions shall be observed.
9. Keep work place tidy, dispose off rubbish and waste in the containers provided.
10. Use right tools for the job to perform job safely.
97 | P a g e
11. Bringing in or being under the influence of intoxicant or narcotics inside the plant
premises is prohibited.
12. Any situation likely to affect the safety of any employees or other co-workers must
be promptly reported to the Engineer-in-charge.
13. Loitering inside the plant area is strictly prohibited.
14. Cover OWS, Stream, water, funnel points, manholes, vents, drains and valves in the
vicinity with asbestos blankets.
15. All photo passes or tokens issued shall be surrendered to security section
immediately after the expiry or termination of contract. Security deposit will be
refunded only after submitting clearance from security section. Loss or replacement
of the same shall invite penalty as per the prevailing rules of ONGC.
16. All existing and amended safety, fire and security rule of ONGC are to be followed
within plant without fail.
In addition to the above basic safety code, all contractor’s workers will have to
undergo safety and fire induction training before employing them for actual work..
ONGC local safety department will make necessary arrangement to conduct such
safety induction programme for contractor’s employees. Contractor must ensure
that all his employees receive this training.
17. ISSUE OF PHOTO GATE PASSES:
For entry to ONGC, Uran Plant, Uran photo passes will be issued by ONGC security
department for which necessary formalities as required by security department are
to be complied with. For Police verification certificate and all the charges will be born
by the contractor.
The successful contractor who has been awarded the job shall apply in the
prescribed Proforma for issue of photo gate pass of their workers and site
supervisors well in advance before actual start of work at ONGC, Uran.
98 | P a g e
18. RETURN OF PHOTO GATE PASSES:
18.1. All the photo gate passes issued to the contractor’s workers/site supervisors have to
be surrendered essentially after completion of the work. Against the loss of any of
the photo gate passes issued to the contractor shall invite penalty as mentioned
below of as decided by ONGC from time to time:
18.2. Whenever any photo gate pass is lost, the contractor or the contractor’s employees
concerned should lodge a police complaint immediately stating actual facts in the
complaint.
a) In case of first loss of photo gate pass, a penalty of Rs. 250/- (rupees two
hundred fifty only) will be imposed for each lost/damaged pass and duplicate
pass will be issued, if needed.
b) In case of second loss of photo gate pass, a penalty of Rs. 500/- (rupees five
hundred only) will be imposed and triplicate pass will be issued, if needed.
c) In case of loss of photo gate pass third time, a penalty of Rs. 600/- (rupees six
hundred only) will be imposed and contractor’s employee concerned will be
black listed from ONGC and no further passes will be issued to the contractor
for the concerned individual.
d) If the contractor withdraw any of their employees deployed at the site of
ONGC, Uran during the execution of the job, it is advised to surrender the
photo gate pass immediately to In-charge CISF - Pass Section, ONGC Uran and
submit the proof of cancellation of the said photo gate pass to In-charge
Contract Cell. Any outstanding photo gate pass against the contractor will lead
to non-clearance of their final bill after completion the work.
19. Certificate regarding verification of antecedents of contract employees: -
The successful contractor shall produce a certificate from the Gram Panchayat or
Block development Officer of the native place of each worker regarding verification
of antecedents of persons. In lieu of this, the authorized signatory of the firm may
also give an undertaking that the persons deployed by him bear good moral
character. On production of such certificate photo passes to these persons will be
issued as per procedure. However, police verification will be done by ONGC, CISF for
the persons deployed at site and if any person is found having adverse remarks as
per police verification report, his pass will be cancelled immediately. No claim from
contractor whatsoever on this account shall be entertained by ONGC.
99 | P a g e
20. Contractor shall provide medical fitness certificate of employees from a registered
medical practitioner, if required by Engineer-in-Charge.
21. ONGC reserves the right to ask the contractor to replace any person due to
misbehavior or lack of knowledge. Replacement is to be provided immediately.
22. VERIFICATION OF CHARACTER AND ANTECEDENTS OF CONTRACTUAL MAN POWER
In all contracts involving deployment of contractor’s man power within ONGC,s
premises like plants, offices, installations, rigs, stock yards etc., the Contractor shall
submit the following documents to ONGC prior to start work:
(i) Undertaking from the Contractor that the character and antecedents of the
person(s) proposed to be deployed by them is/are impeccable;
(ii) Undertaking from the Contractor that they have scrutinized the previous working
of the person(s) proposed to be deployed by them and there is nothing adverse as
regards his/her character and antecedents.
(ii) Along the above mentioned undertakings, the Contractor will provide certified
photocopies of Police verification certificates for inspection by the authorized
representative of ONGC. The contractor has to obtain Police verification report
(Signed by an officer equivalent to an DSP rank or higher) from the area where the
person (s) to be deployed has/have been residing since the last five years. In Case
the person concerned has not resided at a place for five years at a stretch, Police
verification reports should be obtained from the area where the person (s) has/have
stayed earlier.
Notification for Banned Category of Worker
The contractor must not deploy following categories of employees, which have been
prohibited by the Govt. of India, Ministry of Labour vide Govt. of India Notification
No. U/23013/4/92-LW dated 08/09/1994:- Schedule
(1) Fire Fighting (Fire Supervisor, Fireman, Fire Technician)
(2) Typist
(3) Clerics (Including accounts clerks)
100 | P a g e
(4) Steno Typist and Stenographer
(5) Data Operator
(6) Computer operators
(7) Store keepers
(8) Boiler operators
(9) Telephone operators
(10) Attendants / Helpers / peons
(11) Instrument Technical helper
(12) Radio operators
(13) Drivers (wherever driving works is not done by hiring vehicles on contract but by
vehicles owned by the Oil and Natural Gas Commission)
(14) Cleaner
(15) Sweeper
(16) Watchman
The contractor shall abide to the above directives of notification and give an
undertaking to this effect.
As per Gazette of India, Ministry of labour Notification No. S.O.162(E), New Delhi
dated- 26/02/2001 the following notification is passed against W.P.No.-5847/98.
(17) “In exercise of powers conferred by sub-section(1) of section 10 of the contract
labour ( Regulation & Abolition ) Act,1970 (37 of 1970 ), the central government,
after consultation with the central advisory contract labour board hereby prohibits
with effect from the date of publication of this notification the employment of
helper engaged for executing the work of repairing pipes & replacing pipe lines in the
establishment of Oil & Natural Gas Corporation Limited at their plant, Uran (
Maharashtra )”
The bidder hereby undertakes that he (they) shall abide to the above directives of
Notification as above.
(Signature of Bidder with Seal)
101 | P a g e
PROFORMA FOR ISSUE / RENEWAL OF NEW PASSES
(Contractor’s Letter head is to be used for submission of this form.)
Sl.No. Subject Particulars.
01. Name of Contractor
02. Name of the Job
03. Period of Insurance No. of Persons
04. Period for which pass is to be
issued.
Particulars of individual’s for whom the pass is required to be issued
Sl.No. Name of Persons Pass Number Police Verification No.
01
02
03
04
05
06
07
Undertaking of the Contractor:
102 | P a g e
This is to certify that the above-mentioned personnel are having good character, well known
to me and I take full responsibility of their conduct and character inside the plant premises.
Contractor’s signature and Stamp
OIL AND NATURAL GAS CORPORATION LIMITED
CARD ISSUE CENTRE, SECURITY DEPARTMENT
DRONAGIRI BHAVAN,URAN PLANT URAN-400702
TE:27234753/27234750
CONTRACT INFORMATION
01. Work order/ Contract No. & date :
(Enclose copy of work order)
02. Location of work :
03. Period of contract (Day, Month & Year) :
04. Extension granted, if any : From:________ To: ________
(Enclose copy of extension of order)
05. Total number of Smart Cards to be :
Issued for executing the contract.
06. Name and Designation of Head of :
the Company and Mobile No. :
07. Name & Full address of the Company :
with company office Telephone No.
08. Name & designation of authorized :
representative of company with
Tel. No. : ------ & Mobile No.----- :
09. Name & designation of the Project- :
In-Charge of ONGC to whom the
Contractor is answerable.Tel No. :
------------------------------------------------- ---------------------------------------------------
103 | P a g e
Signature of authorized Representative of
Company
Signature of Project In-Charge of ONGC
Attested by me Attested by me
Signature of Head of Company
Contract (with office seal)
Signature of Head of Executing Department
of ONGC (with office Seal)
104 | P a g e
Application Form For Non-Employee Duty Pass
To be filled in by the individual and submitted to the In-Charge Security, Uran Plant through
Concerned Section / Department / Principal Employer. (Application should accompany
Approval of ONGC’s contract executing department, proof of Date of birth, current Police
clearance certificate and one latest passport size color photographs affixed in the
application).
FIRST MIDDLE SURNAME
1. Name :
(In Block Letters)
2. Father’s Name :
3. Date of Birth ( DD:MM:YYYY) :
4. Place of Birth :
5. Nationality :
6. Qualification :
7. Blood Group :
8. Designation :
9. Contractor’s Name :
10. Contract No. and Date :
11. a) Police Verification :(i) Date:__________(ii) Issued by : __________________
b) MHA (for expatriates only) (i) Date of application ___________________
12. Residential Address :-
:
No Details Present Address Permanent Address
a)Flat/Room N
b)BuildingName /No
c)Street No./ Na
d)Location/Area/Village
PPPAAASSSTTTEEE
YYYOOOUUURRR
PPPHHHOOOTTTOOO
HHHEEERRREEE
105 | P a g e
e)Police Station
f)City
g)District
h)State
i)Pin Code
j)Tel No.:
13. Name & Tel no. of next of Kin :
14. Visible Identification Marks :
15. Passport Details
a) Passport No. :
b) Issued by :
c) Valid Upto :
16. Type of Visa : ___________________Valid up to ____________
(Only Business & Employee Visas are allowed)
17. Safety Briefing given on :
(with official seal & Signature)
18. Work Location:_______________________________________________
19. DECLARATION: I hereby declare that the particulars given above are correct to the
best of my knowledge and belief. I further declare that the pass issued by ONGC will
be surrendered to the Pass Section through the principal contractor immediately on
completion of its validity period /completion of contract, whichever is earlier. In case
of loss of pass, I will immediately report the matter to the police and produce the
copy of FIR in original to security section, ONGC.
__________________________
__________________________
Countersigned by the contractor Signature of contract workman
(office seal with name & designation)
20. DECLARATION: Attached supporting documents have been scrutinized. He has
undergone the mandatory safety briefing, for issue of NED Pass. The photocopies of
all documents are attested by company representative and they were compared
with original by me. After comparison, the original certificates have been returned
106 | P a g e
and attested copies of ID proof and original police clearance certificate are attached
for issuance of the pass.
Date: __________ Project In Charge of
ONGC
(With office seal)
OFFICE USE
Pass No: ________________
Issue Date: ____________ valid up to: _________________
Signature of I/C, CIC
107 | P a g e
CERTIFICATE FROM PROJECT IN-CHARGE OF ONGC
1. Certified that all the above persons, _________________ (in numbers) have
undergone all the mandatory Plant’s safety briefings.
2. The NED Pass applications along with supporting documents have been verified and
certified for issue of NED Passes.
3. Deployment of above personnel is necessary for execution and operation of the
contract.
4. I undertake to ensure surrender of passes immediately after the work/expiry of
contract/pass validity, whichever is earlier.
5. I further undertake to ensure that the Final Bill of contractor will not be released till
such time that all passes are surrendered to the Pass Section by the Contractor and
an NOC is received from Pass Section.
6. One set of photo copies of supporting documents, duly attested, is attached along
with the NED applications.
Date: __________ Signature of Project In-charge of ONGC
(with Office Seal )
OFFICE USE
1. Received the application along with required enclosures and found them in order /
not found them (tick whichever is applicable) in order and returned to contractor
along with reasons in writing on _______________ for rectification.
2. Pass Nos. from ________________ to _____________ issued to the company
representative on ------------
Signature and Date of I/C CIC
108 | P a g e
ANNEXURE – II APPENDIX - 1
PROFORMA OF BANK GUARANTEE TOWARDS PERFORMANCE SECURITY / PERFORMANCE
GUARANTEE
Ref. No. _________________________ Bank Guarantee No ___________
Dated: ______________
To
DGM(P),
I/C-Contract-Cell,
Oil & Natural Gas CORPORATION, Mumbai Region,
Uran Plant, Uran-400702,
Dist:-Raigad, Maharashtra State, India.
Dear Sirs,
1. In consideration of Oil & Natural Gas CORPORATION Limited, incorporated under the
Companies Act, 1956, having its Registered Office at Jeevan Bharti, Tower-II, 124
Connaught Circus, New Delhi-110001, India and one of its offices at Mumbai Region,
Uran Plant, Uran –400702, Dist.-Raigad, Maharashtra State (hereinafter referred to as
`ONGC', which expression shall, unless repugnant to the context or meaning thereof,
include all its successors, administrators, executors and assignees) having entered into
a CONTRACT No. __________________ Dated _______________ (hereinafter called
‘the CONTRACT’ which expression shall include all the amendments thereto) with M/s
__________________________ having its registered/head office at
______________________(hereinafter referred to as the 'CONTRACTOR') which
expression shall, unless repugnant to the context or meaning thereof include all its
successors, administrators, executors and assignees) and ONGC having agreed that
the CONTRACTOR shall furnish to ONGC a performance guarantee for Indian Rupees
.............. for the faithful performance of the entire CONTRACT.
2. We (name of the bank) ______________________________ registered under the laws
of _______ having head/registered office at __________________________
(hereinafter referred to as "the Bank", which expression shall, unless repugnant to the
context or meaning thereof, include all its successors, administrators, executors and
permitted assignees) do hereby guarantee and undertake to pay immediately on first
demand in writing any /all moneys to the extent of Indian Rs. (in figures)
109 | P a g e
__________ (Indian Rupees (in words)_____________________________) without
any demur, reservation, contest or protest and/or without any reference to the
CONTRACTOR. Any such demand made by ONGC on the Bank by serving a written
notice shall be conclusive and binding, without any proof, on the bank as regards the
amount due and payable, notwithstanding any dispute(s) pending before any Court,
Tribunal, Arbitrator or any other authority and/or any other matter or thing
whatsoever, as liability under these presents being absolute and unequivocal. We
agree that the guarantee herein contained shall be irrevocable and shall continue to be
enforceable until it is discharged by ONGC in writing. This guarantee shall not be
determined, discharged or affected by the liquidation, winding up, dissolution or
insolvency of the CONTRACTOR and shall remain valid, binding and operative against
the bank.
3. The Bank also agrees that ONGC at its option shall be entitled to enforce this Guarantee
against the Bank as a principal debtor, in the first instance, without proceeding against
the CONTRACTOR and notwithstanding any security or other guarantee that ONGC may
have in relation to the Contractor’s liabilities.
4. The Bank further agrees that ONGC shall have the fullest liberty without our consent
and without affecting in any manner our obligations hereunder to vary any of the terms
and conditions of the said CONTRACT or to extend time of performance by the said
CONTRACTOR(s) from time to time or to postpone for any time or from time to time
exercise of any of the powers vested in ONGC against the said CONTRACTOR(s) and to
forbear or enforce any of the terms and conditions relating to the said agreement and
we shall not be relieved from our liability by reason of any such variation, or extension
being granted to the said CONTRACTOR(s) or for any forbearance, act or omission on
the part of ONGC or any indulgence by ONGC to the said CONTRACTOR(s) or any such
matter or thing whatsoever which under the law relating to sureties would, but for this
provision, have effect of so relieving us.
5. The Bank further agrees that the Guarantee herein contained shall remain in full force
during the period that is taken for the performance of the CONTRACT and all dues of
ONGC under or by virtue of this CONTRACT have been fully paid and its claim satisfied
or discharged or till ONGC discharges this guarantee in writing, whichever is earlier.
6. This Guarantee shall not be discharged by any change in our constitution, in the
constitution of ONGC or that of the CONTRACTOR.
110 | P a g e
7. The Bank confirms that this guarantee has been issued with observance of appropriate
laws of the country of issue.
8. The Bank also agrees that this guarantee shall be governed and construed in
accordance with Indian Laws and subject to the exclusive jurisdiction of Indian Courts of
the place from where the purchase CONTRACT has been placed.
9. Notwithstanding anything contained herein above, our liability under this Guarantee is
limited to Indian Rs. (in figures) ______________ (Indian Rupees (in words)
____________________) and our guarantee shall remain in force until
______________________.(indicate the date of expiry of bank guarantee) excluding
the claim period of sixty (60) days.
Any claim under this Guarantee must be received by us before the expiry of this
Bank Guarantee. If no such claim has been received by us by the said date, the rights of
ONGC under this Guarantee will cease. However, if such a claim has been received by us
within the said date, all the rights of ONGC under this Guarantee shall be valid and shall not
cease until we have satisfied that claim.
In witness whereof, the Bank through its authorized officer has set its hand and
stamp on this ........ day of ........200__ at .....................
WITNESS NO. 1
(Signature) (Signature)
Full name and official address (in
legible letters) with Bank Stamp
Full name, designation and official address (in
legible letters) with Bank stamp.
WITNESS NO. 2
(Signature) (Signature)
Full name and official address (in
legible letters)
Attorney as per Power of Attorney
No........….…….. Dated …………
INSTRUCTIONS FOR FURNISHING PERFORMANCE GUARANTEE
111 | P a g e
1. The Bank Guarantee by Indian Bidders will be given on non-judicial stamp paper as per
stamp duty applicable at the place from where the purchase CONTRACT has been
placed. The non-judicial stamp paper should be in name of the issuing bank.
2. The expiry date as mentioned in Clause No. 9 should be arrived at by adding 60 days
to the CONTRACT completion date unless otherwise specified in the bidding
documents.
3. The Bank Guarantee by Indian bidders will be given from Nationalized/ Scheduled
Banks only
112 | P a g e
ANNEXURE III
BID EVALUATION CRITERIA
Vital criteria for acceptance of BIDS:
Bidders are advised not to take any exception/ deviations to the bid document.
If exceptions/ deviations are maintained in the bid, such conditional/ non-
conforming bids shall not be considered and may be rejected out rightly.
REJECTION CRITERIA:
TECHNICAL REJECTION CRITERIA:
The following vital technical conditions should be strictly complied with failing
which the bid will be rejected:
Bid should be complete and covering the entire scope of job and should conform
to the technical specifications indicated in the bid documents, duly supported
with authenticated signatory and technical catalogues / literatures wherever
required. Incomplete and non-conforming bids will be rejected out rightly.
Eligibility & Experience of the bidder:
The bidder must have executed the job of fabrication of heat exchanger/re-
tubing of exchanger in any Hydrocarbon industries/ Petrochemical / /Refineries
/Fertilizers Plant/Power Plant/Industrial Unit/Public or Private Sector
Organization Unit during last 7 years from the date of opening of the bid,
should be either of the following:-
113 | P a g e
(a) Three similar completed works each costing not less than the amount equal
to Rs.29,32,504/- (Rupees Twenty Nine Lac Thirty Two Thousand Five
Hundred Four Only)
(b)Two similar completed works each costing not less than the amount equal to
Rs. 36,65,630/- (Rupees Thirty Six Lac Sixty Five Thousand Six Hundred Thirty
only)
(c) One similar completed work costing not less than the amount equal to Rs.
58,65,008/- (Rupees Fifty Eight lac Sixty Five Thousand Eight Only)
The bidder should submit notarized copies of respective contracts, along with
documentary evidence in respect of satisfactory execution of contracts, in the
form of copies of any of the following documents (indicating respective contract
number and type of services), such as
i). Satisfactory Completion/ Performance Report for execution of work
(or)
ii). Proof of Release of Performance Security after completion of the
Contract (or)
iii). Proof of Settlement/ Release of Final Payment Against The Contract
(or)
iv). Any other documentary evidence that can substantiate the satisfactory
execution of each of contracts cited above.
For the above, the work order should not be of dated prior to 7 years from the
date of opening of bid.
Bidders not qualifying the above mentioned eligibility qualifications and
experience will be rejected.
In case the bidder is an Indian Company / Indian Joint venture company, the
Indian Company / Indian Joint Venture Company or its Technical Collaborator /
Joint venture partner should meet the criteria laid down at B.1.2.1.
Details of experience and past performance of the bidder and the collaborator
( In case of collaboration) or of joint venture partner ( In case of a joint venture),
on works /jobs done of similar nature in the past and details of current work in
hand and other contractual commitments , indicating areas and clients are to be
submitted along with techno-commercial bid, in support of the experience laid
114 | P a g e
B.1.2.5(b) Bidders should submit Memorandum Of Understanding (MOU) / Agreement with
their technical collaborator /joint venture partner (in case of joint venture)
clearly indicating their roles under the scope of work.
B.1.2.5(c) MOU / Agreement concluded by the bidder with technical collaborator / joint
venture partner (in case of joint venture), should also be addressed to ONGC,
clearly stating that the MOU / Agreement is applicable to this tender and shall
be binding on them for the contract period. Notwithstanding the
MOU/Agreement, the responsibility of completion of job under this contract will
be with the bidder.
B.1.2.6 Offer of those bidders who themselves do not meet the experience criteria as
stipulated in the BEC can also be considered provided the bidder is a 100%
subsidiary company of the parent company which itself meets the experience
criteria as stipulated in the BEC. In that case as the subsidiary company is
down at Para B.1.2.1
In case the bidder is a consortium of companies, the following requirements
should be satisfied by the bidder:
a. a) The leader of the consortium should satisfy the minimum experience
requirement as per Para B.1.2.1 above.
b. b) The leader of the consortium should confirm unconditional acceptance
of full responsibility of executing the ‘scope of work’ of this tender. This
confirmation should be submitted along with the techno-commercial bid.
c) All the members of the consortium must undertake in their MOU that each
party shall be jointly and severally liable to ONGC for any and all obligations
and responsibilities arising out of this contract.
B.1.2.5(a) Indian Companies / Joint Venture Companies:- Indian bidders whose proposal
for technical collaboration / joint venture involves foreign equity participation
or payment of royalty and or lump-sum for technical know-how and wherever
Govt. approval is necessary, are required to submit copy of Govt. approval, on
their application submitted to SIA, prior to the date of price bid opening.
115 | P a g e
dependent upon the experience of the parent company with a view ensure
commitment and involvement of the parent company for successful execution
of the contract, the participating bidder should enclose an agreement
(Appendix-12A) between the parent and the subsidiary company and corporate
guarantee (Appendix- 12B) from the parent company to ONGC for fulfilling the
obligation under the agreement (copy of appendix 12 A & B are enclosed in
Annexure-I of tender document).
B.1.3 Bidder should confirm to complete the job as per schedule and entire scope of
work, within 6 months from the date of letter/notification of award of work.
B.2 COMMERCIAL REJECTION CRITERIA:
The following vital commercial conditions should be strictly complied with,
failing which, the bid will be rejected.
B.2.1 Proof of the sale/issue of bid document: The forwarding letter, in original, as a
proof of issue of the tender document, duly signed by tender issuing officer,
must be sent by the bidder along with the offer.
B.2.2 Bid should be submitted in Two-Bid system in two separate envelopes super-
scribed as follows:
a. Envelope no. 1: Techno-Commercial bid
Tender No: ------------------Due on: ------------------
b. Envelope no. 2: Priced bid
Tender No: ------------------
The Techno-Commercial bid shall contain all details but with the price column of
the price bid format blanked out. However a tick mark (√) shall be provided
against each item of the price bid format to indicate that there is a quote
against this item in the Price bid. The Priced bid shall contain only the prices
duly filled in as per the price bid format. Only the price format is to be
submitted in the Priced Commercial bid.
Both the offers shall be placed in one big single sealed cover duly super-scribed
with name of work, tender no. , due date & time of opening of tender as well as
the name & address of the Bidder.
116 | P a g e
Offers with techno commercial bid containing prices shall be rejected out
rightly.
B.2.3 Notarized copy of Registration Certificate of the firm under any one of the
following categories shall be submitted by the bidder along with Techno-
Commercial bid:
i. Indian Companies Act ’56.
ii. Indian Partnership Act’32.
iii. Shops and Establishment Act ’48
iv. Factories Act ’48
v. Directorate of Industries/NSIC Ltd.
B.2.4 The bidder should submit notarized Copy of EPF allotment letter issued in the
firm’s name by Regional Provident Fund Commissioner along with the Techno-
commercial bid. The bidder should also submit the notarized copy of latest
Challan for monthly remittances of EPF to Regional Provident Fund authorities. In
case the bidder is not having EPF Code number at the time of submission of Bid,
an undertaking (As per Annexure-I, Appendix-9 of tender document) should be
furnished by the Bidder that he will obtain a EPF Code number from the Regional
Provident Fund Commissioner and submit the notarized copy of EPF allotment
letter and latest Challan for monthly remittances of EPF contributions to Regional
Provident Fund authorities along with first Invoice submitted for payment against
the work order.
(Note: Conditions for applicability of above provisions
Above clause w.r.t. submission of details on EPF payments shall not be applicable
in following types of contracts:
(a) In those Contracts wherein the services/jobs has been performed exclusively
in the premises of the contractor. Certificate to the effect is to be submitted by
the Contractor that services/jobs to be executed under the contract have been
performed exclusively in his premises.
OR
(b) In those contracts also wherein contractor has employed only their full time
regular employees for execution of the contract. Certificate to the effect is to be
submitted by the contractor that for execution of the contract, no contractual
labour has been employed and only full time regular employees of the contractor
have been employed.
117 | P a g e
OR
(c) Fulfilment of conditions on EPF mentioned below:
Information sought in above clause pertaining to only EPF shall not be required
to be submitted in those contracts wherein the contractor has employed only
those of his employees whose pay exceeds Rs. 6500/- per month. Certificate to
the effect is to be submitted by the contractor that for execution of the contract,
the monthly wages of all employees who have been employed, exceeds to Rs.
6500/-per month.)
B.2.5 The bidder shall submit along with Techno-Commercial bid, Bid-bond/EMD for
an amount of Rs.1,46,650/- (Rupees One Lac Forty Six Thousand Six Hundred
Fifty Only) in the form of a Crossed Demand Draft/ Pay Order of any Indian
Nationalized Bank/ Scheduled Commercial Bank valid for 90 days from the date of
issue in the name of DGM (F&A), ONGC, Uran Plant, Uran payable at Mumbai /
Navi Mumbai OR in the form of Bank Guarantee valid for 120 days from the date
of opening of tender as per prescribed format.
B.2.6 Earnest money / bid bond / bid security will not be necessary for tenders from
Central Govt. / Central PSUs, OEMs / Authorised Distributers of OEMs. The firms
registered with NSIC will be exempted from furnishing bid bond / bid security /
earnest money against open and limited tender irrespective of monetary limit
mentioned in their registration certificate provided they submit evidence that
they have a valid registration during entire bid validity period for the item(s)
they intend to quote.
B.2.7 Bidders should submit a notarized copy of valid registration certificate under the
VAT/ Sales Tax Rules. Further wherever the scope of supply involves rendering of
any taxable service along with supply of goods / materials.
B.2.8 The bidder should submit a notarized copy of a valid service tax registration
certificate issued by concerned authorities of Tax department. In case the
registration certificate for the requisite category(i.e. repair & maintenance) of
service is not available at the time of submission of offer, an undertaking (As per
Annexure-I, Appendix-9 of tender document) should be furnished for submission
118 | P a g e
of copy of requisite service tax registration certificate along with first invoice
submitted for payment against the purchase order.
B.2.9 The bidder should confirm furnishing of Performance Bank Guarantee for 10% of
the total contract value strictly as per the prescribed Performa enclosed in the
tender document within two weeks of letter/fax of award/LOI as per the relevant
clause of the tender document towards the execution of the contract, if
awarded.
B.2.10 The bidder has to give an undertaking ( As per Annexure-I, Appendix-9 of tender
document ) that they will provide all the necessary certificates / documents for
enabling ONGC to avail input VAT Credit and CENVAT credit benefits (wherever
applicable), in respect of the payments of VAT, Excise Duty, Service Tax etc
which are payable against the contract (if awarded) along with documentary
evidence for payment of excise duty and service tax and the invoice should be
made accordingly to enable ONGC to avail the benefits as per respective rules.
B.2.11 The Bidder should submit a declaration ( As per Annexure-I, Appendix-9 of
tender document ) to the effect that neither the bidder themselves, nor any of
its allied concerns, partners or associates or directors or proprietors involved in
any capacity, are currently serving any banning orders issued by ONGC
debarring them from carrying on business dealings with ONGC
B.2.12 PAYMENT CLAUSE:
No advance payment and mobilization / demobilization charges at any stage and
at any time will be made to the contractor.
100% payment will be made after successfully completion of the job as per scope
of work.
For payment of bill, contractor has to produce the bill/invoice in triplicate at our
dispatch section, HR/ER Depts. And after obtaining tracking number the copy of
the bill/invoice shall be forwarded to concerned Engineer in charge for
certification and release of payment.
Bill/invoice should be raised in the name of DGM (F&A), I/C-Finance, ONGC, Uran
Plant,Uran. Payment shall be made within 21days from the date of receipt of the
bill to Engineer in charge.
The original invoices should also accompany the following documents /details:
119 | P a g e
a. Particulars required for making payments through ‘Electronic Payment
Mechanism’ in accordance with the payment clause.
b. Invoice (i.e. Tax invoice as per relevant Service Tax rules, in original and
duplicate, clearly indicating Service Tax registration number, Service
Classification, Rate and amount of Service Tax shown Separately).
c. Insurance policies and proof of payment of premium. (As applicable).
d. Details of statutory payments like EPF etc. (As applicable).
e. Undertaking by the contractor regarding compliance of all statutes.
f. Certificate by the contractor stating that labour have been paid not less than
minimum wages. (As Applicable).
Any other document specifically mentioned in the contract, or supporting
documents in respect of other claims (if any), permissible under the contract.
C. CONTRACT PERIOD:
The contract shall be valid for a period of 6 Months from the date of placement
LOI / NOA.
D. ACCEPTANCE OF TERMS & CONDITIONS:
The Bidder must confirm in techno-commercial bid the acceptance of scope of
work, General Conditions of contract, Special conditions of Contract,
instructions to bidder, Schedule of rates, LD clause, Force Majeure clause,
Termination clause, Security deposit clause, Arbitration clause, Jurisdiction
clause, Insurance clause, Payment clause, Tax / duties/levies clause, warranty &
guaranty clause and all other terms & conditions of the tender document in
Toto.
E. OFFERS OF FOLLOWING KINDS WILL BE REJECTED:
E.1 Offers made without Bid Security/Bid Bond/Bank Guarantee along with the offer.
120 | P a g e
E.2
Telex/ Telegraphic /Fax/ Email/ Xerox/ Photo copy bids and bids containing
scanned signature
E.3 Offers which do not confirm unconditional validity of the bid for 90 days from the
date of opening of bid
E.4 Offers where prices are not firm during the entire duration of the contract and/or
with any qualifications.
E.5 Offers which do not conform to the mobilization period indicated in the bid
E.6 Offers which do not conform to ONGC’s price bid format
E.7
Offers which do not conform to the contract completion period indicated in the
bid
F. TAX LIABILITY:
F.1 Personnel Taxes:
Bidder must agree to bear all personnel taxes within the quoted rates as may
be imposed on his employees and the employees of his sub-contractors,
vendors, back-up consultants, etc. on account of their association with or for
performance of this work.
F.2
F.3
Corporate Taxes:
Bidder must agree to bear corporate taxes within the quoted rates which may
be levied on the contractor, his consortium/Joint venture partner(s), sub-
contractors, back-up consultants, cess, etc. for the performance of this work.
VAT, Service Tax & Works Contract Tax:
The rates quoted shall be inclusive of Maharashtra VAT, Service Tax & Works
Contract Tax etc. ONGC is registered under the Central Sales Tax Act and is
entitled to avail concessional rate of Central Sales tax against form `C’ in respect
of inter-state purchases directly consigned to ONGC from the contractors in
India provided the details of such cases are specifically mentioned in the bid and
the contract.
121 | P a g e
F.4 The Bidder shall have to clearly mention the Tax Break-up of individual items in
their Tax Invoices, without which the Bills shall not be passed.
F.5
Bidders taking exception to Tax Liability Clause shall be rejected
G PRICE EVALUATION CRITERIA:
G.1 Firm rates:
Bidders should quote firm rates for the entire validity of their offer and extension(s)
if any, and until the works are completed in all respects. No escalation whatsoever
in prices shall be allowed during the tenure of the contract, including any extension
thereof. Bids not offering firm prices shall be liable for rejection.
G.2 Evaluation and Comparison of offers:
The techno-commercially accepted offers will be evaluated on the basis of Total
Lump Sum price quoted by the bidder as per Schedule of Rates i.e. inclusive of all
duties, taxes, levies, cess, etc for deciding L-1 bidder. Total Lump Sum price
(inclusive of taxes) shall be calculated as sum of “Unit rate x line item quantities” as
stipulated in the schedule of rates of the tender document for commercial
evaluation of the bid for deciding L-1 bid.
G.3 Price bid must be in the Performa given in Schedule of Rates of the tender
document and shall contain only prices. Any terms and conditions stipulated in the
Price bid shall not be given any cognizance.
G.4 Bidders are required to ascertain themselves, the prevailing rates of Service tax and
all other taxes and duties as applicable (alongwith rates of all related levies viz.
Surcharges, Cess, etc.,) on the scheduled date of submission of Price Bids/ revised
Price Bids (if any) and ONGC would not undertake any responsibility whatsoever in
this regard. Accordingly, bidders (excluding the Service providers covered under
clause iv(1) below) should quote the prices, clearly indicating the applicable rate of
Service Tax, description of service as per Service Tax rules (under which the
respective service is covered) alongwith all other taxes and duties applicable. Details
of abatements / deductions available, if any, should also be indicated specifically.
Total price inclusive of all taxes and duties (including Service Tax) as applicable shall
be taken for evaluation.In case the Services Tax and other taxes / duties is not
quoted explicitly in the offer, the offer will be considered as inclusive of all liabilities
of the same. In the contracts involving multiple services or involving supply of
certain goods / materials alongwith the services, the Bidder should give separate
122 | P a g e
break-up for cost of goods and cost of various services, and accordingly quote
Service Tax as applicable for the taxable services. In case the Bidder does not give
break-up of the quoted prices, separately indicating the components of taxable
services and material to be supplied (if any), the Service Tax will be loaded on entire
quoted / contract value for evaluation as per provisions of the statute Service Tax, if
applicable, on input services required to meet the scope of work will be borne by
the Bidder within their quoted prices. The bidder must avail eligible CENVAT/VAT
credit of tax/ duty paid on input services /capital goods/ Inputs and benefit of
CENVAT/VAT credit should be passed on to ONGC. by way of quot ing rate(s) net of
CENVAT/VAT credit i.e. gross value of service adjusted by CENVAT/VAT credit
available to the bidder.
G.4.1 For Services received by ONGC, in taxable territory of India whereas per
relevant provisions of tender document, the liability to pay 100% Service Tax is on
ONGC, the Bidder should not include the Service Tax in his quoted price. However,
the Service Tax as applicable will be loaded for evaluation on the portion of services
which attract Service Tax.In case the Bidder does not give break-up of the quoted
price, separately indicating the component for the taxable services and material to
be supplied (if any), the Service Tax will be loaded on entire quoted / Contract
value.
G.4.2 For Services received by ONGC, where liability to pay Service Tax shall be
discharged Partly by ONGC and partly by respective service provider as per clause
No. 10.3.1 and 10.3.2 of Annexure-II of contract, bidder should include 100%
Service Tax in their quoted prices. However, payment to the contractor shall be
made after deducting portion of Service Tax to be Paid by ONGC directly to the tax
authorities.
G.5 Bidders are advised not to give separate discounts. Discounts if any should be merged
in the rates against the quoted items. Discount of any type indicated separately will
not be taken into account for evaluation purpose. However, in the event such offer
without considering discount is found to be lowest, ONGC shall avail such discount at
the time of placement of order.
G.6 If Customs Duty/Excise Duty/Sales Tax/Service Tax are being taken into account for
the purpose of evaluation of bids then the rate of Customs Duty/Excise Duty/Sales
Tax Service Tax as prevailing on the date of bid closing/date of revised price bid
closing as the case may be will be taken into consideration for the propose of
evaluation of bids. However, if there is any change in the rate of Customs Duty /
Excise Duty / Sales Tax / Service Tax after the date of bid closing/date of revised price
123 | P a g e
bid closing but prior to award of the contract due to which there is any change in the
original ranking of Bidders, then the Bidder who has emerged lowest based on the
rate of Customs Duty/Excise Duty/Sales Tax Service Tax as prevailing on the date of
bid closing/bid submission/opening of revised prices would be considered for award
of contract but subject to matching his prices with the Bidder who has emerged
lowest as a result of modification in duties & taxes.
In case originally evaluated L-1 Bidder fails to match the price (with the Bidder who
emerges L-1 due to change in Duties) then the award of contract will go to the
Bidder who subsequently emerges L-1 due to change in Duties.
H. GENERAL:
H.1 The BEC over-rides all other similar clauses operating anywhere in the Bid Document.
H.2 The bidder must quote for complete scope of work. The bidder in Techno-Commercial
bid should confirm the same. Incomplete offer shall be liable for rejection.
H.3 The bidder must quote the rates in schedule of rates format inclusive of all taxes,
duties, levies, etc. The bidder in Techno-Commercial bid should confirm the same.
H.4 The bidder is prohibited to offer any service / benefit of any manner to any employee
of ONGC and the contractor may suffer summary termination of contract /
disqualification in case of violation.
H.5 No alteration/change in the Price bid by the bidders after the closing date will be
taken into account for the evaluation unless specifically asked for by ONGC.
H.6 Unsolicited clarification / letters from the bidders after opening of the Techno-
Commercial bid will not be considered; rather it may lead to disqualification of the
bid at the discretion of ONGC.
H.7 ONGC reserves the right to reject or prefer any bid and to annul the bidding process
and reject all bids at any time prior to award of contract, without thereby incurring
any liability to the affected bidder or bidders or any obligation to inform the affected
bidder or bidders of the ground for ONGC’s action. The ONGC also reserves to itself
the right to accept any bid in part or spilt the order between two or more bidders.
H.8 On site inspection will be carried out by ONGC’s officers / Third Parties representative
at the discretion of the ONGC.
124 | P a g e
H.9 All the documents submitted with the bid must be notarized.
H.10 Bidders must submit the BEC Matrix duly filled in along with the Techno-Commercial
bid
H.11 Bidder shall comply with all the Waste Management and House-Keeping clauses
mentioned in the tender document.
BEC MATRIX
Bidders should submit the ‘BEC Matrix” duly filled in, so as to re-confirm compliance with
each of the requirements of BEC and other important conditions of the tender. Each such
confirmation should be clearly stated in the “Bid Matrix’ indicating “confirmed” or “Not
Confirmed”, as applicable. Further, against each such confirmation, bidders should also
indicate the reference / location (page no. / Annexure, etc.) Of the respective detail(s) /
document(s) enclosed in the bid, so as to easily locate the same in the bid document. Each
entry in the “Bid Matrix’ must be filled-in in indelible ink (entries written in pencil will be
ignored). Further, each page of the ‘Bid Matrix’ and the corrections / overwriting / erasures
(if any) should be signed manually by the person (or, persons) signing the bid.
Bidder are advised to ensure submission of ‘Bid Matrix’, duly filled-in as per above
requirements, for avoiding rejection of their offers.
BEC
Clause
Description Remarks
A. Vital criteria for acceptance of BIDS:
Bidders are advised not to take any exception/ deviations to the
bid document. If exceptions/ deviations are maintained in the
bid, such conditional/ non-conforming bids shall not be
considered and may be rejected outright.
Confirmed/
Not
Confirmed
B. REJECTION CRITERIA:
B.1 TECHNICAL REJECTION CRITERIA:
125 | P a g e
The following vital technical conditions should be strictly
complied with failing which the bid will be rejected:
B.1.1 Bid should be complete and covering the entire scope of job and
should conform to the technical specifications indicated in the
bid documents, duly supported with authenticated signatory and
technical catalogues / literatures wherever required. Incomplete
and non-conforming bids will be rejected outright.
Confirmed/
Not
Confirmed
B.1.2 Eligibility & Experience of the bidder:
B.1.2.1 The bidder must have executed the job of fabrication of heat
exchanger/re-tubing of exchanger in any Hydrocarbon
industries/ Petrochemical / /Refineries /Fertilizers Plant/Power
Plant/Industrial Unit/Public or Private Sector Organization Unit
during last 7 years from the date of opening of the bid, should be
either of the following:-
(a) Three similar completed works each costing not less than
the amount equal to Rs. Rs.29,32,504/- (Rupees Twenty
Nine Lac Thirty Two Thousand Five Hundred Four Only)
OR
(b) Two similar completed works each costing not less than the
amount equal to Rs. 36,65,630/- (Rupees Thirty Six Lac Sixty
Five Thousand Six Hundred Thirty only)
OR
(C) One similar completed work costing not less than the
amount equal to Rs. 58,65,008/- (Rupees Fifty Eight lac
Sixty Five Thousand Eight Only)
The bidder should submit notarized copies of respective
contracts, along with documentary evidence in respect of
satisfactory execution of contracts, in the form of copies of any
of the following documents (indicating respective contract
number and type of services), such as
i). Satisfactory Completion/ Performance Report for execution
of work (or)
ii). Proof of Release of Performance Security after completion
of the Contract (or)
Submitteded
/Not
Submitteded
126 | P a g e
iii). Proof of Settlement/ Release of Final Payment Against The
Contract (or)
iv). Any other documentary evidence that can substantiate the
satisfactory execution of each of contracts cited above.
For the above, the work order should not be of dated prior to 7
years from the date of opening of bid.
Bidders not qualifying the above mentioned eligibility
qualifications and experience will be rejected.
B.1.2.2 In case the bidder is an Indian Company / Indian Joint venture
company, the Indian Company / Indian Joint Venture Company or
its Technical Collaborator / Joint venture partner should meet
the criteria laid down at B.1.2.1.
Confirmed/
Not
Confirmed
B.1.2.3 Details of experience and past performance of the bidder and the
collaborator (in case of collaboration) or of joint venture partner
(in case of a joint venture), on works /jobs done of similar nature
in the past and details of current work in hand and other
contractual commitments, indicating areas and clients are to be
submitted along with techno-commercial bid, in support of the
experience laid down at Para B.1.2.1
Confirmed/
Not
Confirmed
B.1.2.4 In case the bidder is a consortium of companies, the following
requirements should be satisfied by the bidder:
a) The leader of the consortium should satisfy the minimum
experience requirement as per Para B.1.2.21 above.
b) The leader of the consortium should confirm unconditional
acceptance of full responsibility of executing the ‘scope of
work’ of this tender. This confirmation should be submitted
along with the techno-commercial bid.
c) All the members of the consortium must undertake in their
MOU that each party shall be jointly and severally liable to
ONGC for any and all obligations and responsibilities arising
out of this contract.
Confirmed/
Not
Confirmed /
Not
Applicable
B.1.2.5
(a)
Indian Companies / Joint Venture Companies:- Indian bidders
whose proposal for technical collaboration / joint venture
involves foreign equity participation or payment of royalty and or
lump-sum for technical know-how and wherever Govt. approval
Confirmed/
Not
Confirmed /
Not
127 | P a g e
is necessary, are required to submit copy of Govt. approval, on
their application submitted to SIA, prior to the date of price bid
opening.
Applicable
B.1.2.5
(b)
Bidders should submit Memorandum Of Understanding (MOU) /
Agreement with their technical collaborator /joint venture
partner (in case of joint venture) clearly indicating their roles
under the scope of work.
Confirmed/
Not
Confirmed /
Not
Applicable
B.1.2.5
(c)
MOU / Agreement concluded by the bidder with technical
collaborator / joint venture partner (in case of joint venture),
should also be addressed to ONGC, clearly stating that the MOU /
Agreement is applicable to this tender and shall be binding on
them for the contract period. Notwithstanding the
MOU/Agreement, the responsibility of completion of job under
this contract will be with the bidder.
Confirmed/
Not
Confirmed /
Not
Applicable
B.1.2.6 Offer of those bidders who themselves do not meet the
experience criteria as stipulated in the BEC can also be
considered provided the bidder is a 100% subsidiary company of
the parent company which itself meets the experience criteria as
stipulated in the BEC. In that case as the subsidiary company is
dependent upon the experience of the parent company with a
view ensure commitment and involvement of the parent
company for successful execution of the contract, the
participating bidder should enclose an agreement (Appendix-
12A) between the parent and the subsidiary company and
corporate guarantee (Appendix- 12B) from the parent company
to ONGC for fulfilling the obligation under the agreement (copy
of appendix 12 A & B are enclosed in Annexure-I of tender
document).
Confirmed/
Not
Confirmed /
Not
Applicable
B.1.3 Bidder should confirm to Complete the job as per schedule and
entire scope of work within 6 months from the date of
letter/notification of award of work.
Confirmed/
Not
Confirmed
B.2 COMMERCIAL REJECTION CRITERIA:
The following vital commercial conditions should be strictly complied with,
failing which, the bid will be rejected.
B.2.1 Proof of the sale/issue of bid document: The forwarding letter,
in original, as a proof of issue of the tender document (purchased
Confirmed/
Not
128 | P a g e
against payment of requisite tender fee), duly signed by tender
issuing officer, must be sent by the bidder along with the offer.
Confirmed
B.2.2 Bid should be submitted in Two-Bid system in two separate
envelopes super-scribed as follows:
a. Envelope no. 1: Techno-Commercial bid
Tender No: _________ Due on: ---------
b. Envelope no. 2: Priced bid
Tender No: __________
The Techno-Commercial bid shall contain all details but with
the price column of the price bid format blanked out. However
tick mark (√) shall be provided against each item of the price bid
format to indicate that there is a quote against this item in the
Priced bid. The Priced bid shall contain only the prices duly
filled in as per the price bid format. Only the price format is to
be submitted in the Priced Commercial bid.
Both the offers shall be placed in one big single sealed cover
duly super-scribed with name of work, tender no. , due date &
time of opening of tender as well as the name & address of the
Bidder.
Offers with techno commercial bid containing prices shall be
rejected out rightly
Confirmed/
Not
Confirmed
B.2.3 Notarized copy of Registration Certificate of the firm under any
one of the following categories shall be submitted by the bidder
along with Techno-Commercial bid:
i. Indian Companies Act ’56.
ii. Indian Partnership Act’32.
iii. Shops and Establishment Act ’48
iv. Factories Act ’48
v. Directorate of Industries/NSIC Ltd.
Submitted /
Not
Submitted
B.2.4 The bidder should submit notarized Copy of EPF allotment letter
issued in the firm’s name by Regional Provident Fund
Commissioner along with the Techno-commercial bid. The bidder
should also submit the notarized copy of latest Challan for
monthly remittances of EPF to Regional Provident Fund
authorities. In case the bidder is not having EPF Code number at
the time of submission of Bid, an undertaking (As per Annexure-I,
Appendix-9 of tender document) should be furnished by the
Submitted /
Not
Submitted
129 | P a g e
Bidder that he will obtain a EPF Code number from the Regional
Provident Fund Commissioner and submit the notarized copy of
EPF allotment letter and latest Challan for monthly remittances
of EPF contributions to Regional Provident Fund authorities
along with first Invoice submitted for payment against the work
order.
B.2.5
The bidder shall submit along with Techno-Commercial bid, Bid-
bond/EMD for an amount of Rs.1,46,650/- (Rupees One Lac
Forty Six Thousand Six Hundred Fifty Only) in the form of a
Crossed Demand Draft/ Pay Order of any Indian Nationalized
Bank/ Scheduled Commercial Bank valid for 90 days from the
date of issue in the name of DGM (F&A), ONGC, Uran Plant, Uran
payable at Mumbai / Navi Mumbai OR in the form of Bank
Guarantee valid for 120 days from the date of opening of tender
as per prescribed format. .
D.D.No.........
.
Dtd…............
...... for an
amount
of……….........
................iss
ued by
………......…....
. Payable
at.…… ….......
OR
BGNo...........
....
Dtd...........Va
lid up to …
…… …
B.2.6 Earnest money / bid bond / bid security will not be necessary for
tenders from Central Govt. / Central PSUs, OEMs / Authorised
Distributers of OEMs. The firms registered with NSIC will be
exempted from furnishing bid bond / bid security / earnest
money against open and limited tender irrespective of monetary
limit mentioned in their registration certificate provided they
submit evidence that they have a valid registration during entire
bid validity period for the item(s) they intend to quote
Confirmed/
Not
Confirmed
B.2.7 Bidders should submit a notarized copy of valid registration
certificate under the VAT/ Sales Tax Rules. Further wherever the
scope of supply involves rendering of any taxable service along
with supply of goods/ materials.
Submitted /
Not
Submitted
B.2.8 The bidder should submit a notarized copy of a valid service tax Submitted /
130 | P a g e
registration certificate issued by concerned authorities of Tax
department. In case the registration certificate for the requisite
category (i.e. repair & maintenance) of service is not available at
the time of submission of offer, an undertaking ( As per
Annexure-I, Appendix-9 of tender document ) should be
furnished for submission of copy of requisite service tax
registration certificate along with first invoice submitted for
payment against the purchase order.
Not
Submitted
B.2.9 The bidder should confirm furnishing of Performance Bank
Guarantee for 10% of the total contract value strictly as per the
prescribed Performa enclosed in the tender document within
two weeks of letter/fax of award/LOI as per the relevant clause
of the tender document towards the execution of the contract, if
awarded
Confirmed/
Not
Confirmed
B.2.10 The bidder has to give an undertaking ( As per Annexure-I,
Appendix-9 of tender document ) that they will provide all the
necessary certificates / documents for enabling ONGC to avail
input VAT Credit and CENVAT credit benefits (wherever
applicable), in respect of the payments of VAT, Excise Duty,
Service Tax etc which are payable against the contract (if
awarded) along with documentary evidence for payment of
excise duty and service tax and the invoice should be made
accordingly to enable ONGC to avail the benefits as per
respective rules.
Confirmed/
Not
Confirmed
B.2.11 The Bidder should submit a declaration ( As per Annexure-I,
Appendix-9 of tender document ) to the effect that neither the
bidder themselves, nor any of its allied concerns, partners or
associates or directors or proprietors involved in any capacity,
are currently serving any banning orders issued by ONGC
debarring them from carrying on business dealings with ONGC
Confirmed /
Not
Confirmed
2.12 Payment clause:
No advance payment and mobilization / demobilization charges
at any stage and at any time will be made to the contractor.
100% payment will be made after successfully completion of the
job as per scope of work.
Confirmed/
Not
Confirmed
131 | P a g e
For payment of bill, contractor has to produce the bill/invoice in
triplicate at our dispatch section, HR/ER Depts. And after
obtaining tracking number the copy of the bill/invoice shall be
forwarded to concerned Engineer in charge in charge for
certification and release of payment.
Bill/invoice should be raised in the name of DGM (F&A), I/C-
Finance, ONGC, Uran Plant,Uran. Payment shall be made within
21days from the date of receipt of the bill to Engineer in charge.
The original invoices should also accompany the following
documents /details:
a. Particulars required for making payments through ‘Electronic
Payment Mechanism’ in accordance with the payment clause.
b. Invoice (i.e. Tax invoice as per relevant Service Tax rules, in
original and duplicate, clearly indicating Service Tax
registration number, Service Classification, Rate and amount
of Service Tax shown separately).
C. Insurance policies and proof of payment of premium. (As
applicable).
d. Details of statutory payments like EPF etc. (As applicable).
e. Undertaking by the contractor regarding compliance of all
statutes.
f. Certificate by the contractor stating that labour has been paid
not less than minimum wages. (As Applicable).
Any other document specifically mentioned in the contract, or
supporting documents in respect of other claims (if any),
permissible under the contract.
C. CONTRACT PERIOD:
The contract shall be valid for a period of 6 Months from the
date of issue of LOI/NOA.
Confirmed/
Not
Confirmed
D. ACCEPTANCE OF TERMS & CONDITIONS:
The bidder must confirm in techno-commercial bid the
acceptance of scope of work, general conditions of contract,
special conditions of contract, instructions to bidder, schedule of
rates, ld clause, force majeure clause, termination clause,
Confirmed/
Not
Confirmed
132 | P a g e
security deposit clause, arbitration clause, jurisdiction clause,
payment clause and all other terms & conditions of the tender
document in Toto.
E. OFFERS OF FOLLOWING KINDS WILL BE REJECTED:
E.1
Offers made without Bid Security/Bid Bond/Bank Guarantee
along with the offer.
Confirmed/
Not
Confirmed
E.2 Telex/ Telegraphic /Fax/ Email/ Xerox/ Photo copy bids and bids
containing scanned signature
Confirmed/
Not
Confirmed
E.3
Offers which do not confirm unconditional validity of the bid for
90 days from the date of opening of bid
Confirmed/
Not
Confirmed
E.4
Offers where prices are not firm during the entire duration of the
contract and/or with any qualifications
Confirmed/
Not
Confirmed
E.5
Offers which do not conform to the mobilization period indicated
in the bid
Confirmed/
Not
Confirmed
E.6 Offers which do not conform to ONGC’s price bid format
Confirmed/
Not
Confirmed
E.7
Offers which do not conform to the contract completion period
indicated in the bid
Confirmed/
Not
Confirmed
F. TAX LIABILITY:
F.1 Personnel Taxes:
Bidder must agree to bear all personnel taxes within the quoted
rates as may be imposed on his employees and the employees of
his sub-contractors, vendors, back-up consultants, etc. on
account of their association with or for performance of this work.
Confirmed/
Not
Confirmed
F.2 Corporate Taxes:
Bidder must agree to bear corporate taxes within the quoted
rates which may be levied on the contractor, his
consortium/Joint venture partner(s), sub-contractors, back-up
consultants, cess, etc. for the performance of this work.
Confirmed/
Not
Confirmed
F.3 VAT, Service Tax & Works Contract Tax: Confirmed/
133 | P a g e
The rates quoted shall be inclusive of Maharashtra VAT, Service
Tax & Works Contract Tax etc. ONGC is registered under the
Central Sales Tax Act and is entitled to avail concessional rate of
Central Sales tax against form `C’ in respect of inter-state
purchases directly consigned to ONGC from the contractors in
India provided the details of such cases are specifically
mentioned in the bid and the contract.
Not
Confirmed
F.4 The Bidder shall have to clearly mention the Tax Break-up of
individual items in their Tax Invoices, without which the Bills shall
not be passed.
Confirmed/
Not
Confirmed
F.5 Bidders taking exception to Tax Liability Clause shall be rejected
Confirmed/
Not
Confirmed
G. PRICE EVALUATION CRITERIA:
G.1 Firm rates:
Bidders should quote firm rates for the entire validity of their
offer and extension(s) if any, and until the works are completed
in all respects. No escalation whatsoever in prices shall be
allowed during the tenure of the contract, including any
extension thereof. Bids not offering firm prices shall be liable
for rejection.
Confirmed/
Not
Confirmed
G.2 Evaluation and Comparison of offers:
The techno-commercially accepted offers will be evaluated on
the basis of Total Lump Sum price quoted by the bidder as per
Schedule of Rates i.e. inclusive of all duties, taxes, levies, cess,
etc for deciding L-1 bidder. Total Lump Sum price (inclusive of
taxes) shall be calculated as sum of “Unit rate x line item
quantities” as stipulated in the schedule of rates of the tender
document for commercial evaluation of the bid for deciding L-1
bid.
Confirmed/
Not
Confirmed
G.3 Price bid must be as per the Performa given in Schedule of
Rates of the tender document and shall contain only prices. Any
terms and conditions stipulated in the Price bid shall not be
given any cognizance.
Confirmed/
Not
Confirmed
134 | P a g e
G.4 Bidders are required to ascertain themselves, the prevailing
rates of Service tax and all other taxes and duties as
applicable (alongwith rates of all related levies viz. Surcharges,
Cess, etc.,) on the scheduled date of submission of Price Bids/
revised Price Bids (if any) and ONGC would not undertake any
responsibility whatsoever in this regard.
Accordingly, bidders (excluding the Service providers covered
under clause iv(1) below) should quote the prices, clearly
indicating the applicable rate of Service Tax, description of
service as per Service Tax rules (under which the respective
service is covered) alongwith all other taxes and duties
applicable. Details of abatements / deductions available, if
any, should also be indicated specifically.
Total price inclusive of all taxes and duties (including Service
Tax) as applicable shall be taken for evaluation.In case the
Services Tax and other taxes / duties is not quoted explicitly in
the offer, the offer will be considered as inclusive of all
liabilities of the same.
In the contracts involving multiple services or involving supply
of certain goods / materials alongwith the services, the Bidder
should give separate break-up for cost of goods and cost of
various services, and accordingly quote Service Tax as
applicable for the taxable services. In case the Bidder does not
give break-up of the quoted prices, separately indicating the
components of taxable services and material to be supplied (if
any), the Service Tax will be loaded on entire quoted / contract
value for evaluation as per provisions of the statute
Service Tax, if applicable, on input services required to meet
the scope of work will be borne by the Bidder within their
quoted prices. The bidder must avail eligible CENVAT/VAT
credit of tax/ duty paid on input services /capital goods/ Inputs
and benefit of CENVAT/VAT credit should be passed on to
ONGC. by way of quot ing rate(s) net of CENVAT/VAT credit i.e.
gross value of service adjusted by CENVAT/VAT credit available
to the bidder.
G.4.1 For Services received by ONGC, in taxable territory of
India whereas per relevant provisions of tender document, the
Confirmed/
Not
Confirmed
135 | P a g e
liability to pay 100% Service Tax is on ONGC, the Bidder should
not include the Service Tax in his quoted price. However, the
Service Tax as applicable will be loaded for evaluation on the
portion of services which attract Service Tax.In case the Bidder
does not give break-up of the quoted price, separately
indicating the component for the taxable services and
material to be supplied (if any), the Service Tax will be
loaded on entire quoted / Contract value.
G.4.2 For Services received by ONGC, where liability to pay
Service Tax shall be discharged Partly by ONGC and partly by
respective service provider as per clause No. 10.3.1 and 10.3.2
of Annexure-II of contract, bidder should include 100% Service
Tax in their quoted prices. However, payment to the
contractor shall be made after deducting portion of Service
Tax to be Paid by ONGC directly to the tax authorities.
G.5 Bidders are advised not to give separate discounts. Discounts if
any, should be merged in the rates against the quoted items.
Discount of any type indicated separately will not be taken into
account for evaluation purpose. However, in the event such offer
without considering discount is found to be lowest, ONGC shall
avail such discount at the time of placement of order.
Confirmed/
Not
Confirmed
G.6 If Customs Duty/Excise Duty/Sales Tax/Service Tax are being
taken into account for the purpose of evaluation of bids then the
rate of Customs Duty/Excise Duty/Sales Tax Service Tax as
prevailing on the date of bid closing/date of revised price bid
closing as the case may be will be taken into consideration for
the propose of evaluation of bids. However, if there is any
change in the rate of Customs Duty/Excise Duty /Sales Tax /
Service Tax after the date of bid closing/date of revised price bid
closing but prior to award of the contract due to which there is
any change in the original ranking of Bidders, then the Bidder
who has emerged lowest based on the rate of Customs
Duty/Excise Duty/Sales Tax Service Tax as prevailing on the date
of bid closing/bid submission/opening of revised prices would be
considered for award of contract but subject to matching his
prices with the Bidder who has emerged lowest as a result of
modification in duties & taxes.
Confirmed/
Not
Confirmed
136 | P a g e
In case originally evaluated L-1 Bidder fails to match the price
(with the Bidder who emerges L-1 due to change in Duties) then
the award of contract will go to the Bidder who subsequently
emerges L-1 due to change in Duties
H. GENERAL:
H.1 The BEC over-rides all other similar clauses operating anywhere
in the Bid Document.
Confirmed/
Not
Confirmed
H.2 The bidder must quote for complete scope of work. The bidder
in Techno-Commercial bid should confirm the same. Incomplete
offer shall be liable for rejection
Confirmed/
Not
Confirmed
H.3 The bidder must quote the rates in schedule of rates format
inclusive of all taxes, duties, levies, etc. The bidder in Techno-
Commercial bid should confirm the same.
Confirmed/
Not
Confirmed
H.4 The bidder is prohibited to offer any service / benefit of any
manner to any employee of ONGC and the contractor may
suffer summary termination of contract / disqualification in
case of violation.
Confirmed/
Not
Confirmed
H.5 No alteration/change in the Price bid by the bidders after the
closing date will be taken into account for the evaluation unless
specifically asked for by ONGC.
Confirmed/
Not
Confirmed
H.6 Unsolicited clarification / letters from the bidders after opening
of the Techno-Commercial bid will not be considered; rather it
may lead to disqualification of the bid at the discretion of
ONGC.
Confirmed/
Not
Confirmed
H.7 ONGC reserves the right to reject or prefer any bid and to annul
the bidding process and reject all bids at any time prior to award
of contract, without thereby incurring any liability to the affected
bidder or bidders or any obligation to inform the affected bidder
or bidders of the ground for ONGC’s action. The ONGC also
reserves to itself the right to accept any bid in part or spilt the
order between two or more bidders.
Confirmed/
Not
Confirmed
H.8 On site inspection will be carried out by ONGC’s officers / Third
Parties representative at the discretion of the ONGC.
Confirmed/
Not
Confirmed
H.9 All the documents submitted with the bid must be notarized. Confirmed/
137 | P a g e
Not
Confirmed
H.10 Bidders must submit the BEC Matrix duly filled in along with the
Techno-Commercial bid
Confirmed/
Not
Confirmed
H.11 Bidder shall comply with all the Waste Management and House-
Keeping clauses mentioned in the tender document.
Confirmed/
Not
Confirmed
138 | P a g e
ANNEXURE IV
Scope of Work
ONGC Uran intends to carryout re-tubing of old Heat Exchangers bearing Tag No. E-
112, E-512 & E-2503 one number each as per the following scope of work. This scope
covers the removal of exchangers, transportation of exchangers to it works,
procurement of specified materials as per data sheet/drawings, assembling of tube
bundle (using old tube sheet & baffles), hydro-testing at specified pressure,
passivation, application of Titanium Putty on tube sheets, Painting, transportation to
Uran Plant & installation of exchangers. The broad scope of work is given as under:
General:-
a. Exchangers to be collected from ONGC, Uran Plant with end covers. Bidder shall
arrange crane of suitable capacity, manpower and tools & tackles for lifting and
truck/trailer for transportation of the exchangers from ONGC, Plant to his works.
b. Bidder shall remove the weld deposits from welded joints of shell and both the
sheets & remove the existing tube bundles from the shells. Bidder shall take due
care not to damage the shell, tube sheets & baffles in the process of weld deposit
removal or removal of tube bundle.
c. Bidder shall clean the internal of the shells mechanically to remove the deposit
entirely and offer for inspection to TPIA/EIC representative.
d. Repair of nozzles, saddles, other piping connections, supports partition plates &
tube sheets gasket seat including any build up job to maintain the thickness of any
component of exchangers, shall be carried by the bidder as per code.
e. Bidder shall clean the (removed) tube sheet & baffle surfaces & tube holes to the
metal finish and offer to TPI/EIC for inspection.
f. Bidder shall procure new material for re-tubing including tubes, spacers, tie rods &
all flange gaskets from reputed vendors. Bidder shall send the proof of the
purchase along with mil test certificate to engineer-in-charge/TPI for review.
g. Bidder shall carry out all fabrication related to re-tubing which includes old tube
sheets, old baffles with new tubes, tie rods, spacers etc. as per data sheet.
h. Insert tubes in to tube sheet; expand tube ends then air test if found leakage re-
expand the tubes till the leakage is arrested; then seal weld tube ends; test welds;
repair as needed. After completion of welding activities stress reliving shall be
139 | P a g e
done by contractor. 15% of tube expansion & welding should be witnessed by
TPIA.
i. Hydro-testing of exchangers to Shell / Tube side to be done in presence of TPIA and
ONGC Engineer-In-Charge.
j. After Hydro-Test, Passivation has to be carried out as per the procedure given here
under:
1. Isolate the exchangers and set up a circuit with an external tank with heating
coil inside and a pump to circulate cleaning solution.
FLUSHING:
2. Flush the exchangers with fresh water to remove loose material (like dirt etc.)
till such time clear water comes.
INHIBITED ACID CLEANING:
3. Circulate Inhibited Acid (5-6 % Citric Acid and 1% Rodine-213) along with non
ionic wetting agent like TEEPOL through exchangers Loop for 6 to 8 hours.
4. It total iron concentration reaches 5000-8000 PPM and concentration below
2% acid percentage then dump the cleaning solution and repeat the cycle with
fresh inhibited acid.
5. Samples to be tested for pH, TDS and iron on hourly basis.
6. Normal operating temperature should be 50-60 deg C.
7. When Iron concentration and acid concentration of solution reaches steady
state and cleaning is completed. Drain the cleaning solution.
NEUTRALIZING:
8. Circulate 1-2% solution of Soda Ash for one to two for neutralization.
9. Rinse the neutralizing solution with water till pH of Inlet and Outlet is same.
PASSIVATION:
10. Immediately fill and Circulate with 1-3% of Sodium Hexametaphosphate for 4-6
hours keeping operating temperature around 50-60 deg. C. Analyze for
Phosphate levels in Inlet and Outlet. (Normally maintain 30-40 PPM O-PO4
level).
11. Drain the passive solution without flushing with water.
DRYING:
12. Dry the circuit with dry air.
k. After Passivation successful bidder has to prepare surface of tube sheet & internal
side of end covers and apply Titanium putty on tube sheet & brush able ceramic
on inside of end covers.
140 | P a g e
l. Shop painting: External surface of the shell and internal surfaces other than gasket
faces and other machined surfaces shall be given one coat of primer paint
followed by two coats of epoxy paint. The make of primer & epoxy paint shall be
approved by ONGC. Surfaces to be painted shall be prepared for painting by
removing loose mill scale, loose rust, oil, grease and other firms or substances
harmful to the adhesion of paint by an approved method such as shot blast
cleaning.
m. After completion of above activities, the inside of exchangers shall be thoroughly
drained & dried out by passing hot air for sufficient time. After drying, the
exchangers shall be purged and filled with N2 at 0.25 Kg/ cm2
prior to
transportation of exchangers to ONGC, Uran.
n. Old retrieved Tubes and other internals (Spacer, tie rod etc.) of the exchangers
shall be kept by the vendor at their works and cost consideration for the same to
be given while quoting for the job.
o. Dismantling, Transportation, erection & commissioning of the exchangers at site in
Uran Plant after removing the existing in-service exchangers shall be under the
scope of contractor. ONGC shall isolate the exchangers from service. Bidder shall
get clearance from engineer in charge ONGC before taking up removal of in-service
heat exchangers. Crane of suitable capacity, tools, tackles & manpower for
removal of in-service exchangers and erection of re-tubed exchangers shall be
arranged by the bidder.
p. Bidder shall transport and place the removed in-service exchangers to the
designated place as per the direction of Engineer-in-charge.
q. Inspection of the job at various stages at the bidder’s workshop shall be done by
TPI agency appointed by ONGC as per the quality plan approved by ONGC.
r.After completion of job successful bidder has to provide following documents with
the each re-tubed exchangers:
i. Inspection report right from start to end with the endorsement from TPIA.
ii. Hard & soft copy of approved drawings.
iii. QAP
iv. WPS Certificate
v. Test certificate of filler wire
vi. Material test certificate
vii. Tube inspection certificate
viii. Stress relieved report
141 | P a g e
ix. Skeleton shell inspection report
x. Calibration report of pressure gauge
xi. Hydro test report
I. Material:-
1.1 All the material required for re-tubing of Heat Exchangers shall be as per data
sheet only. All bolting and gaskets, nozzles with blind covers (wherever specified);
internal flanges (if any), internal bolting, cleats etc. shall also be in bidder’s scope
of supply.
Material as specified in the drawing / Technical Specification/ Data Sheet shall only
be used for fabrication. Tube should be ASTM A 179 14 SWG (Wall thickness)
seamless cold drawn tubes straight tubes with following specifications:
A. Chemical composition:
a) Carbon %: 0.06-0.18
b) Manganese: 0.27-0.63
c) Phosphorus Max.: 0.035
d) Sulphur Max.: 0.035
B. Hardness requirement: the tube shall have a hardness number not
exceeding 72 HRB. Rockwell hardness test shall be made.
C. Tensile Test:
a) Tensile Strength Ksi [MPa]: 47 [325]
b) Yield Strength ksi [MPa]: 26 [180]
c) Elongation in 2” or 50 mm, min %: 35
In addition to manufacturer’s test certificate contractor has to carry out material
testing from Govt. /EIL/ONGC approved labs and produce certificates, TPIA shall
verify the same. All charges for material test shall be borne by contractor.
1.2 Any deviations or use of equivalent material shall have prior approval of ONGC.
1.3 Materials procured and used for fabrication shall be new and of first quality,
supported with test certificates and shall meet all the requirement of ASTM, ASME
Section VIII Div.1, TEMA Class-R and the drawings.
1.4 One product analysis of each heat shall be carried out as a supplementary
requirement and reported. Chemical analysis shall be as per applicable
specifications.
1.5 Thinning, machining & scaling allowances shall be added to minimum design
thickness specified in attached drawings.
142 | P a g e
1.6 Gasket used for flange joints should be SS-304 spiral wound gasket with graphite
filler SS inner ring & CS outer ring dimensions as per ASME B16.20-1998 (R2004).
1.7 All external bolts shall be stud bolts threaded to full length, each with two
hexagonal nuts.
Technical Part of Special Conditions of the Contract:
1. Payment terms: 100% payment shall be released after satisfactory completion of
exchangers as per scope of work.
2. Completion Schedule:
The complete re-tubing job as per scope of work of exchangers E-112, E-512 & E-
2503 shall be completed within 06 Months from the date of placement of LOA.
3. Inspection: Entire inspection activities for re-tubing shall be carried out by TPIA. TPIA
shall be arranged by ONGC for a maximum period of 21 days for the exchangers.
However, if additional days required, contractor shall pay for additional days.
4. Mobilization: Successful bidder has to mobilize & lift the exchanger within 15 days
from the date of placement of LOI.
5. Guarantee / Warrantee:
a) Re-Tubed exchanger shall be guaranteed for material & workmanship for duration of
12 months after being put in operation successfully at ONGC site, Uran.
b) Bidder shall guarantee that all materials used in the equipment have been submitted
to regular acceptance procedure and free from any defect regarding quality, form
and appearance.
c) Any defect during the guarantee/ warrantee period vendor should rectify the defect
without delay and free of charge, if the vendor fails to attend / rectify the job. ONGC
shall rectify the defect and cost towards the rectification shall be deducted from the
vendor.
143 | P a g e
SPECIFICATION DATA SHEET E - 112
Service of unit: Propane Refrigerant Condenser Project LPG Recovery
Location URAN
Size 1300 - 8500 Type AEM Horiz
Surface Per unit 1132 m
2
Shell Per Unit 1
Performance of One Unit
Shell Side Tube Side
Fluid Circulated Hydrocarbon Cooling Water
Total Fluid Entering kg/hr
Operating Temperature
o
C IN 70 OUT 40 IN 33 OUT 37
Operating Pressure kg/cm
2
15.2 2.5
No. of Passes One Four
CONSTRUCTION OF ONE SHELL
Design pressure kg/cm
2
19 7.5
Test Pressure kg/cm
2
per code per code
Design Temperature
o
C 90 T/SHT 75
No. of Tubes 2300; O. D. 19.05mm Thk: 2.11 mm (min); Length 8500 mm; Pitch: 23.81
Shell I.D. 1300 mm Thk: 18 long Baffle Yes/No Sealing Strips Yes/no
Baffles 29 Nos Double SEMG Pitch: 268 % cut: dia: 1294.5 AREA: vert/Horizontal Imp. Plate: Yes/No
Tie Rod: 06 Nos, ø12.7 Lg. 7785; Tie Rod: 10 Nos, ø 12.7, Lg. 8052
Spacer Tube: 10 Nos 482 Lg; 06 Nos 650 Lg; 280 Nos 260 Lg; 78 Nos 528 Lg all of ø19.05 2.11 Thk
Materials
Nozzles
Shell Side Tube Side
Shell SA516 Gr. 70 No. Dia Series & Type No. Dia Series & Type
Channel Cover SA 266 Gr. 2 IN 1 10" 300# WNRF 1 16" 150# WNRF
Shell Channel SA516 Gr. 70 OUT 1 8" 300# WNRF 1 16" 150# WNRF
Baffles/Tube Support IS 2062 Gr. B Test Ring Yes/No Test Flange yes/No
144 | P a g e
Tubes SA179
Weight (kg)
Bundle Empty Full of Water
Tie Rod IS 2062 Gr. B 27500 41000
Tube Sheet SA 266 Gr. 2 TEMA Class R Code ASME Section VIII Div -I
Page 145
Page 146
147 | P a g e
SPECIFICATION DATA SHEET E - 512
Service of unit: Propane Refrigerant Condenser Project LPG Recovery
Location URAN
Size 1100 - 8000 Type AEM Horiz Connected in Parallel
Surface Per unit 757 m
2
Surface per Unit 757 m
2
Shell Per Unit 1
Performance of One Unit
Shell Side Tube Side
Fluid Circulated Hydrocarbon Cooling Water
Total Fluid Entering kg/hr
Operating Temperature
o
C IN 69 OUT 45 IN 33 OUT 37
Operating Pressure kPa 1490.611 245.166
No. of Passes One Two
CONSTRUCTION OF ONE SHELL
Design pressure kg/cm
2
19 7.5
Test Pressure kg/cm
2
(g) 28.5 11.25
Design Temperature
o
C 90 T/SHT 65
No of tubes 1600; O.D. 19.05 mm 14 BWG (min); Length 8000 mm; Pitch 23.81
Tube Sheet LHS & RHS 2 no, 1256 Ø Thk: 60,
Shell O.D. 1100 mm I.D; 16 thk long Baffle Yes/No Sealing Strips Yes/no, Tube Sheet: 1278 Ø X 60Thk
Baffles: 30 Nos OD 1095.5 Thk: 6 Double SEMG % cut: AREA: vert/Horizontal Imp. Plate: Wide: 300 Lg: 255 Yes
Tie Rod: 8 Nos Dia: 12, Lg: 7530, Tie Rod: 4 Nos Dia: 12, Lg: 7288
Spacer Tube: 56 Nos OD: 19.05 14BWG Lg: 478, 234 Nos OD: 19.05 14 BWG Lg: 236, 12 Nos OD: 19.05 14 BWG Lg: 438
Materials Nozzles Shell Side Tube Side
148 | P a g e
Shell SA516M gr. 485 No. Dia
Series &
Type No. Dia Series & Type
Impingement Baffle SA-36M IN 1 10" 300# WNRF 1 16" 150# WNRF
Baffles SA-36M OUT 1 8" 300# WNRF 1 16" 150# WNRF
Tie Rod SA-36M
Spacer Tube SA 179M
Channel RHS/LHS SA516M gr. 485 Test Ring Yes/No Test Flange yes/No
Tube Sheet SA-226M Gr. 2
Weight (kg)
Bundle Empty Full of Water
Tubes SA179 20000 27000
TEMA Class R Code ASME Section VIII Div -I
Page 149
Page 150
151 | P a g e
SPECIFICATION DATA SHEET E-2503
Service of unit Pre-Heater-LPG Column Condenser Project LPG Recovery
Location URAN
Size 9000-10272 Type AEL Horiz
Connected in-
Parallel
Surface Per unit 586 m ² Surface per Unit 586 m ²
Shell Per Unit
One
Performance of One Unit
Shell Side Tube Side
Fluid Circulated Hydrocarbon Cooling Water
Total Fluid Entering kg/hr
Operating
Temperature o
C
IN 58.4 OUT
46.5
IN 33
OUT 43.0
Operating Pressure kg/cm2
9.0 4.0
No. of Passes one two
CONSTRUCTION OF ONE SHELL
Design pressure kg/cm2
14.0 7.5
Test Pressure kg/cm2
As per code As per code
Design
Temperature o
C 180 65
No. of Tubes 1100 O.D ¾ in 14 BWG (min) Length 9000 mm Pitch
15/16” ∆
Tube Sheet LHS & RHS: 02 Nos, ø 1094, Thk 47
Shell I.D. 940 Thk 12 long Baffle Yes/No dia. 935.5 thk: 8 Sealing Strips
Yes/No
Baffles: 22 Nos; Double SEMG; Pitch 365 % cut dia 935.5 thk 8 mm AREA Vert /
Horizontal Imp. Plate: yes / No
Materials
Nozzles
Shell Side Tube Side
Shell
SA 516 Gr.
60 No. Dia
Series &
Type
No.
Dia
Series
&
Type
Impingement
Baffle
SA 516 Gr.
60 IN 1 12” 150# WNRF 1 10”
150#
WNRF
Baffles IS 2062 Gr. B OUT 1 8” 150# WNRF
1
10”
150#
WNRF
Tie Rod IS 2062 Gr. B
MP Connection
+ bundle flange
4
11/2”
150#
WNRF
Spacer Tube SA 179
150# WNR
Fent + blind
flange
2
11/2”
150#
WNRF
Channel
Shell
LHS/RHS
SA 516 Gr.
60
Drains + blind
flange
2
11/2”
150#
WNRF
152 | P a g e
Tube Sheet
SA 516 Gr.
60
Flange
connection
1
2”
150#
WNRF
Tubes SA179
Test Ring Yes/No Test Flange
yes/No
Weight (kg)
Bundle Empty Full of Water
2223015230
TEMA Class R Code ASME Section VIII
Div -I
Page 153
Page 154
155 | P a g e
ANNEXURE V
Schedule of Rates
“Re-tubing of heat exchangers E-112D, E-512B and E-2503 A/B of LPG 1, 2 & CFU Plant at Uran”.
Amount to be quoted in INR
Sr.
No
Description
Unit
Materials Part/Unit Service Part/Unit Total price/Unit
(Materials +Service)
A+B=
C
Qty
D
Total Amount
CXD
Basic
Price
A1
Tax,
VAT,
A2
Total
Price
A1+A2=
A
Basic
Price
B1
Service tax
incl. Cess, etc
B2
Total
Price
B1+B2=
B
1
Re-Tubing of Heat –
Exchanger E-112D as
per scope of work.
Nos
01
2
Re-Tubing of Heat –
Exchanger E-512B as per
scope of work.
Nos
01
3
Re-Tubing of Heat –
Exchanger E-2503A/B as
per scope of work.
Nos
01
Grand Total Lump Sum
Price (1+2+3)(in figures)
(In words)
156 | P a g e
This page is left blank intentionall
157 | P a g e
SCHEDULE OF RATES
Sub: Job of “Re-tubing of heat exchangers E-112D, E-512B and E-2503 A/B of LPG 1, 2 & CFU
Plant at Uran”.
TAX BREAK-UP FORMAT
RATES OF TAXES & DUTIES CONSIDERED AND INCLUDED IN THE ABOVE LUMP SUM PRICE ARE
TO BE INDICATED FOR THE PURPOSE OF CLAIM IN ACCORDANCE WITH CHANGE IN LAW
Laws, Acts, Rules, Regulations, etc. and the tariffs thereof considered by the bidder while
estimating the incidence of taxes, duties, fees, levies, etc. considered and included in the
bidder’s Lump sum price as per relevant provisions of general Conditions of Contract to be used
for the purpose of adjustment to the contract price in the event of change in law.
ITEM
Tender
document clause
reference
Laws /Act / Rules
/Regulations etc.
reference
Tariff indicating
rate of tax
/duty /fee
/levy, etc.
Amount included
in the Lump sum
Price
Excise Duty
including Cess
Sales Tax / VAT
Service Tax
including Cess
Works Contract
Tax
Any other tax
1. ONGC is registered under the Central Sales Tax Act and is entitled to avail concessional rate of
Central Sales tax against form `C' in respect of inter-state purchases directly consigned to
ONGC from the contractors in India provided the details of such cases are specifically
mentioned in the bid and the contract.
2. Bidder may suitably add other heads towards all the provisions and related information with
regard to above.
3. The bidder not indicating the rates as desired above shall not be entitled for any claim due to
change in law.
4. The bid will be evaluated on the basis of the total lump sum amount and not on separate
individual work wise amount.
(Signature & Seal of the Bidder)
158 | P a g e
This page is left blank intentionally
159 | P a g e
TENDER NO. UP14C13001
TENDER DOCUMENT
(Price Bid)
For the job of
“Re-tubing of heat exchangers E-112D, E-512B and E-2503 A/B of LPG 1, 2 &
CFU Plant at Uran”.
160 | P a g e
This page is left blank intentionally
161 | P a g e
ANNEXURE V
Schedule of Rates
“Re-tubing of heat exchangers E-112D, E-512B and E-2503 A/B of LPG 1, 2 & CFU Plant at Uran”.
Amount to be quoted in INR
Sr.
No
Description
Unit
Materials Part/Unit Service Part/Unit Total price/Unit
(Materials +Service)
A+B=
C
Qty
D
Total Amount
CXD
Basic
Price
A1
Tax,
VAT,
A2
Total
Price
A1+A2=
A
Basic
Price
B1
Service tax
incl. Cess, etc
B2
Total
Price
B1+B2=
B
1
Re-Tubing of Heat –
Exchanger E-112D as
per scope of work.
Nos
01
2
Re-Tubing of Heat –
Exchanger E-512B as per
scope of work.
Nos
01
3
Re-Tubing of Heat –
Exchanger E-2503A/B as
per scope of work.
Nos
01
Grand Total Lump Sum
Price (1+2+3)(in figures)
(In words)
(Signature & Seal of the Bidder
162 | P a g e
This page is left blank intentionally
163 | P a g e
SCHEDULE OF RATES
Sub: Job of Re-tubing of heat exchangers E-112D, E-512B and E-2503 A/B of LPG 1, 2 &
CFU Plant at Uran”.
TAX BREAK-UP FORMAT
RATES OF TAXES & DUTIES CONSIDERED AND INCLUDED IN THE ABOVE LUMP SUM PRICE ARE
TO BE INDICATED FOR THE PURPOSE OF CLAIM IN ACCORDANCE WITH CHANGE IN LAW
Laws, Acts, Rules, Regulations, etc. and the tariffs thereof considered by the bidder while
estimating the incidence of taxes, duties, fees, levies, etc. considered and included in the
bidder’s Lump sum price as per relevant provisions of general Conditions of Contract to be used
for the purpose of adjustment to the contract price in the event of change in law.
ITEM
Tender
document clause
reference
Laws /Act / Rules
/Regulations etc.
reference
Tariff indicating
rate of tax
/duty /fee
/levy, etc.
Amount included
in the Lump sum
Price
Excise Duty
including Cess
Sales Tax / VAT
Service Tax
including Cess
Works Contract
Tax
Any other tax
5. ONGC is registered under the Central Sales Tax Act and is entitled to avail concessional rate of
Central Sales tax against form `C' in respect of inter-state purchases directly consigned to
ONGC from the contractors in India provided the details of such cases are specifically
mentioned in the bid and the contract.
6. Bidder may suitably add other heads towards all the provisions and related information with
regard to above.
7. The bidder not indicating the rates as desired above shall not be entitled for any claim due to
change in law.
8. The bid will be evaluated on the basis of the total lump sum amount and not on separate
individual work wise amount.
(Signature & Seal of the Bidder)
164 | P a g e
This page is left blank intentionally

1324 2013 04-09-13-28-52-1365494332

  • 1.
    0 | Pa g e TENDER NO. UP14C13001 TENDER DOCUMENT (Techno-commercial Bid) For the job of “Re-tubing of heat exchangers E-112D, E-512B and E-2503 A/B of LPG 1, 2 & CFU Plant at Uran”.
  • 2.
    1 | Pa g e NO: MR /URAN/28/C/CC/ 59P/2012-13/UP14C13001 Date:-- INVITATION TO BID To, _______________________________________ _______________________________________ ______________________________________ Dear Sirs/Madam, Sealed tenders in two-bid system are invited for the “Re-tubing of heat exchangers E-112D, E-512B and E-2503 A/B of LPG 1, 2 & CFU Plant at Uran” in the prescribed Bid Forms. The tender document consists of total 142 pages including this letter. Tenders should be submitted in two bid system comprising of:- Techno-commercial bid: - Tender documents along with all its enclosures as mentioned in the Bid Evaluation Criteria and correspondence if any, in one envelope super scribing “Techno-commercial bid” and duly sealed. Any deviation or exception, if any, should be submitted with this bid only. Price bid: - The rate shall be filled only in the schedule given in this tender document. Duly filled in documents should be placed in separate envelope super scribing “Price Bid” and duly sealed. No other document or terms and conditions should be put in the price bid. Both the envelopes containing techno-commercial bid and price bid should be put together in one envelope duly sealed and be superscribed with the subject of the tender. ONGC reserves its right to reject any or all tenders without assigning any reason whatsoever. With regards, Yours sincerely CE(P), CCell. For DGM (P) I/C-CONTRACT CELL
  • 3.
    2 | Pa g e TENDER NOTICE Name of the Work “Re-tubing of heat exchangers E-112D, E-512B and E-2503 A/B of LPG 1, 2 & CFU Plant at Uran”. UP14C13001 Contract Cell,Contract-Cell Dronagiri Bhavan,Uran Plant, Uran 400 702 Tender Section Type of Tender Indigenous Open Tender in Two Bid System. Notification date 05.04.2013 Cost of the Tender Document (IN INR) Rs.500/- (Rupees Five hundreds only) in the form of crossed Demand drawn in favour of GM (F&A), ONGC, Uran Plant, Uran Payable at Mumbai. Period of sale of tender 05.04.2013: 1000 Hrs to 25.04.2013: 1600 Hrs. Date of Closing 06.05.2013 at 1600 Hrs. Date of Opening of Tender 06.05.2013 at 1700 Hrs (if possible) Earnest Money Deposit Rs 1,46,650/- (Rupees One Lac Forty Six Thousand Six Hundred Fifty Only) in the form of Crossed Demand drawn in favour of DGM(F&A),ONGC, Uran Plant,Uran payable at Mumbai Only and issued by any Nationalized / scheduled Commercial Bank. Essential Qualification Criteria The bidders must fulfill the Essential qualification Criteria as specified in the NIT and all necessary documents shall be submitted at the time of submission of tender:. Experience:- The bidder must have executed the job of fabrication of heat exchanger/re-tubing of exchanger in any Hydrocarbon industries/ Petrochemical / /Refineries /Fertilizers Plant/Power Plant/Industrial Unit/Public or Private Sector Organization Unit during last 7 years from the date of opening of the bid, should be either of the following:- (a) Three similar completed works each costing not less than the amount equal to Rs.29,32,504/- (Rupees Twenty Nine Lac Thirty Two Thousand Five Hundred Four Only) (b) Two similar completed works each costing not less than the amount equal to Rs. 36,65,630/- (Rupees Thirty Six Lac Sixty Five Thousand Six Hundred Thirty only) (c) One similar completed work costing not less than the amount equal to Rs. 58,65,008/- (Rupees Fifty Eight lac OIL AND NATURAL GAS CORPORATION LTD. MUMBAI REGION, Uran Plant, Uran Dist.-Raigad– 400702 (Maharashtra)
  • 4.
    3 | Pa g e Sixty Five Thousand Eight Only) The bidder shall submit notarized copies of work order copies containing detailed scope of work and also notarized copies of documentary evidence of completion of the job corresponding to above work orders such as (i) Satisfactory Completion/ Performance Report (or) (ii) Proof of Release of Performance Security after completion of the Contract (Or) (iii) Proof of Settlement/ Release of Final Payment Against the Contract (Or) (iv) Any other documentary evidence that can substantiate the satisfactory execution of the contract in support of above along with techno-commercial bid. Bidders not qualifying the above mentioned eligibility qualifications and experience will be rejected. (B) The bidder should have Registration of their establishment firms either under shops and Establishment Acts or under Companies Act/Directorate of Industries OR Indian Partnership Act’32. OR Factories Act ’48 Conditions 1. No deviations / exceptions to the bid conditions shall be acceptable. 2. ONGC reserves it’s right to issue or not to issue the tender document to any purchaser. Issuing of tender shall not be presumed to be qualified for opening of Price bid. 3. No cognizance will be taken for postal delays. 4. The tenders have to be submitted by the due date and time as per NIT. 5. ONGC further reserves its right to reject any or all tenders without assigning any reason whatsoever. 6. Bidders will have the option of purchasing tender documents from the selling centers’ as per prevailing practice (or) downloading the tender documents and use the same for participating in the tender. But the bidders downloading the document from the website should ensure to submit tender fee so as to reach the tender inviting work centre before the deadline specified for tender sale along with confirmation on major qualifying criteria (MQC) / pre-qualification criteria (PQC) which will be acknowledged by ONGC by issuing Request for Quotation (RFQ) number specific to the tender and bidder through Fax/e-mail. The intending Bidder must be registered with ONGC (having vender code No). The bidders who are not registered with ONGC i.e. not having Vender Code number are requested to get registered
  • 5.
    4 | Pa g e themselves to obtain vender code well in advance prior to closing date of tender selling. Request for Quotation (RFQ) number specific to the bidder and tender cannot be generated if the bidder is not having a valid Vendor Code with ONGC. 7. If tender fee and confirmation of PQC conditions in undertaking are not received before the deadline specified for tender sale, the request of bidder to participate in tender be will be summarily rejected. (ONGC shall not be responsible for any postal delay). 8. The successful bidder has to give an undertaking that they will provide all the necessary certificates / documents for enabling ONGC to avail in put VAT Credit and CENVAT credit benefits (wherever applicable), in respect of the payments of VAT, Excise Duty, Service Tax etc which are payable against the contract (if awarded) along with documentary evidence for payment of excise duty and service tax as applicable under the law. 9. For any clarification please log on to our website “tenders.ongc.co.in” Tender issuing and receiving Office address Tender issuing/receiving/leave reserve office address K.A.KATYARI CE (P),Contact Cell , 111, Dronagiri Bhavan, ONGC Ltd., Uran Plant, Uran-400702, District : Raigad V.K.GUPTA CE (E), Contact Cell , 111, Dronagiri Bhavan, ONGC Ltd., Uran Plant, Uran-400702, District : Raigad Tender submission address Tender box kept at the Office of DGM (P),I/C Contact Cell , Room No.116, Dronagiri Bhavan, ONGC, Uran Plant, /Chief Engineer (P), Room No.111, Dronagiri Bhavan, Uran-400702, Distt.- Raigad.
  • 6.
    5 | Pa g e INDEX ANNEXURE – I INSTRUCTION TO BIDDERS S.No. Clause P. No. 1. Eligibility of the Bidder 09 2. Tender Fee 09 3. Transfer of Bidding Document 09 4. Cost of Bidding 09 5. Content of Bidding Document 10 6. Amendment to Bidding Documents 11 7. Language and Singing of Bid 11 8. Clarification in respect of incomplete Offers 12 9. Documents comprising the Bid 12 10. Price Schedule 13 11. Price Bid 14 12. Income Tax Liability 14 13. Vague and Indefinite Expressions 15 14. Period of Validity of Bids 15 15. Bid Security 16 16. Telex/ Telegraphic/ Telex/ Xerox/ Photo Copy Bids 17 17. Sealing and marking of Bids 17 18. Deadline for submission of Bids 18 19. Late Bids 18 20. Modification and Withdrawal of Bids 18 21. Opening of Bids 18 22. Evaluation and Comparison of Bids 19 23. Unsolicited Post tender Modification 19 24. Examination of Bids 20 25. Specifications 20 26. Contacting the ONGC 20 27. Award Criteria 20 28. ONGC’s Right to Accept any Bid and to reject any or all Bids 20 29. Notification of Award 20 30. Mobilization Period 21 31. Signing of Contract 21 32. Performance Security 21 33. Correspondence 21 34. Representation from the Bidder 22 Appendix – 1 Bidding Document Acknowledgment Proforma 23
  • 7.
    6 | Pa g e Appendix – 2 Bid Submission Proforma 24 Appendix – 3 Agreement 25 Appendix – 4 Proforma of Bank Guarantee towards Bid Security 27-29 Appendix – 5 Check List 30-31 Appendix – 6 Bidders Past Services (Similar) Proforma 30 Appendix – 7 Authorization Letter for Attending Tender Opening 31 Appendix - 8 Proforma Certificate on Relatives of Directors of ONGC 32 Appendix – 9 Proforma for declaration & undertaking by bidder 33 Appendix – 10 Proforma for Health, Safety & Environment 34 Appendix –11 Proforma for EPF norms Compliance 44 Appendix – 12 Proforma for payment through electronic mechanism 53 Appendix- 12A&B Proforma for parant company guarantee 54-56
  • 8.
    7 | Pa g e ANNEXURE – II GENERAL CONTRACT CONDITIONS S.No. Clause P. No. 1. Definitions 57 2. Scope of Work/ Contract 61 3. Duration of the Contract 61 4. Notices and Addresses 61 5. Duties and Power/ Authority 62 6. Contract Document 64 7. Remuneration and Terms of Payment 66 8. Claims/ Taxes & Duties, fees and Accounting 66 9. Performance 65 10. Performance Bond 66 11. Security Deposit 66 12. Forfeiture of SD/ Bank Guarantee 66 13. Time Period of the Contract 67 14. Period of Liability 67 15. Discipline 67 16. Safety and Labour Laws 67 17. Secrecy 67 18. Statutory Requirement 72 19. Insurance 72 20. Indemnity Agreement 78 21. Termination 79 22. Severability 79 23. Consequential Damages 79 24. Liquidated Damages (LD) 81 25. Change in Laws 82 26. Liability of the Government of India 83 27. Force Majeure 84 28. Employment by Firms to Officials of ONGC 84 29. Preference to Local Companies 84 30. Jurisdiction and Applicable Law 84 31. Arbitration 85 32. Labour Laws Arbitration & other Legal matters 80 33. Observance of Labour Laws 86 34. Payment of Wages to Labours 87 35. Govt. Directives on Employment of Labour 91 36. Continuance of the Contract 91 37. Interpretation 91 38. Entire Agreement 91
  • 9.
    8 | Pa g e 39. Site Pollution Responsibility 92 40. General Obligations 92 41. Safety & Security Code for ONGC 96 42. Issue/ Return of Photo Gate Passes 98 43. Appendix – 1 Proforma of Bank Guarantee towards Performance Security 108- 111 44. BEC & BEC Matrix 112-137 45. Scope of Work 138-154 46. Schedule of Rates 155-158 47. Price bid format 159-164
  • 10.
    9 | Pa g e ANNEXURE- I INSTRUCTIONS TO BIDDERS A. INTRODUCTION 1.0 ELIGIBILITY AND EXPERIENCE OF THE BIDDER:- 1.1(a) The bidder should have EPF account and must submit the copy of EPF allotment letter as a proof of having EPF account and latest remittance made to the office of regional Provident Fund Commissioner. In case the bidder is not having EPF Code number at the time of submission of Bid, an undertaking should be furnished by the Bidder that he will obtain a EPF Code number from the Regional Provident Fund Commissioner and submit the notarized copy of EPF allotment letter issued in the firm’s name by Regional Provident Fund Commissioner and latest Challan for monthly remittances of EPF contributions of contract employees engaged by him to Regional Provident Fund authorities along with first Invoice submitted for payment against the work order. 1.1 (b) The bidder must submit copy of registration certificate either under Shops & Establishment Act or Under Company’s Act. 1.1 (C) The bidder must have executed the job of fabrication of heat exchanger/re-tubing of exchanger in any Hydrocarbon industries/ Petrochemical / /Refineries /Fertilizers Plant/Power Plant/Industrial Unit/Public or Private Sector Organization Unit during last 7 years from the date of opening of the bid, should be either of the following:-  Three similar completed works each costing not less than the amount equal to Rs.29,32,504/- (Rupees Twenty Nine Lac Thirty Two Thousand Five Hundred Four Only)  Two similar completed works each costing not less than the amount equal to Rs. 36,65,630/- (Rupees Thirty Six Lac Sixty Five Thousand Six Hundred Thirty only)  One similar completed work costing not less than the amount equal to Rs. 58,65,008/- (Rupees Fifty Eight lac Sixty Five Thousand Eight Only) 1.2 Details of experience and past performance of the bidder on works/ jobs done of similar nature in the past and details of current work in hand and other contractual commitments, indicating areas and clients are to be submitted along with the techno-commercial bid. 2.0 TENDER FEE 2.1 The offer will not be considered without tender fee. The Government Departments are exempted from payment of tender fee.
  • 11.
    10 | Pa g e 2.2 Refund of tender fee In the event a particular tender is cancelled, the tender fee will be refunded to the concerned Bidder. 3.0 TRANSFER OF BIDDING DOCUMENT The Bidding document is not transferable. 4.0 COST OF BIDDING The Bidder shall bear all costs associated with the preparation and submission of its bid, and the ONGC will in no case be responsible or liable for those costs, regardless of the conduct or outcome of the bidding process. B. THE BIDDING DOCUMENT 5.0 CONTENT OF BIDDING DOCUMENTS 5.1 The services required, bidding procedures and contract terms are described in the bidding document. In addition to the Invitation for Bids, the bidding documents include: ANNEXURE- I: = Instructions to Bidders with following Appendices Appendix 1 = Bidding Document Acknowledgement Proforma Appendix 2 = Bid submission Proforma Appendix 3 = Bid submission Agreement Proforma. Appendix 4 = Bid Bond Bank Guarantee Proforma Appendix 5 = Checklist Appendix 6 = Proforma for Bidders past services (similar) Appendix 7 = Proforma of Authorization Letter for attending Tender Opening Appendix 8 = Proforma of Certificate on Relatives of Directors Appendix 9 = Proforma of Declaration & undertaking by Bidders Appendix 10 = Health, Safety & Environment (Hse) Management During Contracts Appendix 11 Appendix 11A = Compliance by the contractor of EPF norms/regulations as per statutory requirement. Format For Regret Letter To Be Submitted On The Letter Head Of The Bidder Appendix 12 Appendix 12A&B = Proforma for payment by electronic payment mechanism Proforma for agreement between bidder and parent company and for parent company guarantee ANNEXURE- II = General Conditions of Contract (GCC) with following appendices.
  • 12.
    11 | Pa g e Appendix 1 = Proforma of Performance Bond Bank Guarantee. ANNEXURE- III = Bid Evaluation Criteria & BEC Matrix. ANNEXURE-IV ANNEXURE –V = Scope of work, Technical Specifications Schedule of Rates 5.2 The bidders are expected to examine all instructions, forms, terms and specifications in the bidding documents. Failure to furnish all information required by the bidding documents will be at the bidder’s risk. Tenders not complying with tender conditions and not conforming to tender specifications will result in the rejection of its bid without seeking any clarifications. Also, bidders are expected to visit the site for assessment of quantum of jobs before submission of their offers preferably on the day of Pre-bid conference. 6.0 AMENDMENT TO BIDDING DOCUMENTS 6.1 No change in specifications and tender conditions will be permissible after bid opening. 6.2 At any time prior to the deadline for submission of bids, the ONGC may, for any reason, whether at its own initiative or in response to 6.3 All prospective Bidders who have received the bidding documents will be notified of the amendments in writing. 6.4 In order to allow prospective Bidders reasonable time in which to take the amendments in to account in preparing their bids, the ONGC may, at its discretion, extend the deadline for the submission of bids. C. PREPARATION OF BIDS 7.0 LANGUAGE AND SIGNING OF BID 7.1 The bid prepared by the bidder and all correspondence and documents relating to the bid exchanged by the Bidder and the ONGC shall be written in English language. Supporting documents and printed literature furnished by the Bidder may be in another language provided they are accompanied by an accurate translation of the relevant passages in English, in which case, for purposes of interpretation of the bid, the translation shall prevail. 7.2 Bids shall be submitted in the prescribed bid Proforma as per appendices 1 to 12 of Annexure-I. The prescribed Proforma at Appendices of Annexure I, duly filled in and signed should be returned intact whether quoting for any item or not. When items are not being tendered for, the corresponding space should be defaced by some such words as "Not Quoting".
  • 13.
    12 | Pa g e 7.3 In the event of the space on the bid Proforma being insufficient for the required purpose, additional pages may be added. Each such additional page must be numbered consecutively, showing the tender number and should be duly signed. In such cases reference to the additional page(s) must be made in the bid. Bidders are requested to note that they have to number all the pages serially of their offers without fail. 7.4 The bid Proforma referred to above, if not returned or if returned but not duly filled in will be liable to result in rejection of the bid. 7.5 The Bidders are advised in their own interest to ensure that all the points brought out in the check list & BEC Matrix are complied with in their bid failing which the offer is liable to be rejected. 7.6 The bids can only be submitted in the name of the Bidder in whose name the bid documents were issued by ONGC. The bid papers, duly filled in and complete in all respects shall be submitted together with requisite information and Annexure / Appendices. It shall be complete and free from ambiguity, change or interlineations. 7.7 The bidder should indicate at the time of quoting against this tender their full postal and telegraphic/telex /fax addresses and also similar information in respect of their authorized agents in India, if any. 7.8 The Bidder shall sign its bid with the exact name of the firm to whom the contract is to be issued. The bid shall be duly signed and sealed by an executive officer of the Bidder's organization. Each bid shall be signed by a duly authorized officer and in the case of a Corporation the same shall be sealed with the corporation seal or otherwise appropriately executed under seal. 7.9 The bidder shall clearly indicate their legal constitution and the person signing the bid shall state his capacity and also source of his ability to bind the Bidder. 7.10 The power of attorney or authorization, or any other document consisting of adequate proof of the ability of the signatory to bind the bidder, shall be annexed to the bid. ONGC may reject outright any bid not supported by adequate proof of the signatory's authority. 7.11 The Bidder, in each tender, will have to give a certificate in its offer, that the terms and conditions (Annexure I and II), as laid down in this bidding document are acceptable to it in toto. Any interlineations, erasures or overwriting shall be valid only if they are initialed by the person or persons signing the bid.
  • 14.
    13 | Pa g e 7.12 The complete bid including the prices must be written by the bidders in indelible ink. Bids and or prices written in pencil will be rejected. 8.0 CLARIFICATION IN RESPECT OF INCOMPLETE OFFERS 8.1 ONGC has to finalize its purchase within a limited time schedule. Therefore, ONGC will not seek any clarifications in respect of incomplete offers. 8.2 Prospective bidders are advised to ensure that their bids are complete in all respects and conform to ONGC's terms, conditions and bid evaluation criteria of the tender. Bids not complying with ONGC's requirement will be rejected out rightly without seeking any clarification. 9.0 DOCUMENTS COMPRISING THE BID 9.1 The bid prepared by the Bidder shall comprise the following components, duly completed: a) Price schedule. b) Documentary evidence establishing that the Bidder is eligible to bid and is qualified to perform the contract if its bid is accepted. The documentary evidence of the Bidder's qualifications to perform the Contract, if its bid is accepted, shall establish to the ONGC's satisfaction: (I) That the Bidder meets all the criteria prescribed in the Bid Evaluation Criteria & BEC Matrix (Annexure-IV). c) Documentary evidence that the services to be rendered by the Bidder conform to the requirements of bidding documents. d) The Un-priced bid Proforma i.e. Schedule of Rate format provided in the tender document is also to be enclosed along with technical bid but leaving the price columns blank or unwritten. Bidder are advised not to add any terms & conditions / deviations in their price bid and if found any deviations / terms & conditions after opening of price bid of the firm, the offer submitted by the firm will be rejected out rightly. e) The documentary evidence of conformity of the services to the bidding documents may be in the form of literature, drawings and data and shall consist of: 1) A detailed description of essential technical and performance characteristics of the services.
  • 15.
    14 | Pa g e 2) An item-by-item commentary on the ONGC’s technical specifications demonstrating conformity to the provisions of the technical specifications of the bidding document. f) BID SECURITY/ BID BOND:- g) The bidders will have to furnish EMD for Rs 1,46,650/- (Rupees One Lac Forty Six Thousand Six Hundred Fifty Only) in the form of crossed demand draft to be drawn in favour of Dy General Manager (F&A), ONGC, Uran Plant, Uran, issued from any nationalized / Scheduled Commercial Bank of India or in the form of bid bond/ bank guarantee with a validity of 120 days (including 30 days claim period) from the date of opening of tender as per Appendix – 4 of Annexure - I, having full contents / paragraphs, provided in the tender document along with their technical bid. The EMD submitted by the bidders shall be refunded after the finalization of the contract in the form of Cheque against Demand Draft submission and in case of bank guarantee, same will be released & interest on it shall not be payable. Any change in contents / paragraph of the Bid Bond format as provided in the tender document will be sole reason for rejection of offer out rightly. PRICE SCHEDULE 9.2 The Bidder shall complete the appropriate price schedule furnished in the bidding document, indicating the services to be provided as per the work scope and schedule of rates thereof. 9.3 Price Bid 9.3.1 The bidders shall indicate on the appropriate price schedule the net unit prices (wherever applicable) Schedule of Rates format should be read with all other Sections of this bid package. No bid will be accepted on any forms other than the one provided by the ONGC in its tender and such offer submitted by the bidder will be out rightly rejected. 9.3.2 Prices quoted by the bidder shall be firm during the bidder’s performance of the contract and not subject to variation on any account. 9.3.3 Discount: Bidders are advised not to indicate any separate discount. Discount, if any, should be merged with the quoted prices. Discount of any type, indicated separately, will not be taken into account for evaluation purpose. However, in the event of such an
  • 16.
    15 | Pa g e offer, without considering discount, is found to be lowest, ONGC shall avail such discount at the time of award of contract. 9.4 CONCESSIONS PERMISSIBLE UNDER STATUTES Bidder, while quoting against this tender, must take cognizance of all concessions permissible under the statutes including the BENEFIT UNDER CENTRAL SALE TAX ACT, 1956, failing which it will have to bear extra cost where Bidder does not avail confessional rates of levies like customs duty, excise duty, sales tax, etc. ONGC will not take responsibility towards this. 10.0 INCOME TAX LIABILITY The bidder will have to bear all Income Tax liability both corporate and personal tax. 11.0 BID CURRENCIES Bidders should quote firm prices in Indian rupee only. Prices quoted in any other currency shall not be considered. 12.0 PAYMENT CLAUSE No advance payment and mobilization / demobilization charges at any stage and at any time will be made to the contractor. 100% payment for the quoted item shall be made within 21 calendar days after satisfactorily completion of exchanger job duly inspected & certified by user representative/EIC as per scope of work. if the Performance Bank Guarantee for Security Deposit is submitted as per BEC Clause B.2.9 And raised the invoice as per Clause No 7.3 of Annexure II of Tender document The bill is to be duly certified & verified for payment by Engineer-In-Charge. 12.1 Deduction of taxes / duties shall be made as per applicable laws. 12.2 The final bill of the work shall be cleared only after submitting the proof of surrender of all photo gate passes issued to the contractor. The proof of surrender of photo gate passes has to be obtained from issuing authority, and to be submitted to Engineer-In-Charge before getting cleared the final bill. 12.3 Receipts for payment made on account of a work, when executed by a firm on partnership must also be signed by the serving partners, except where the contractors are described in their tenders as a firm in which case the receipts must
  • 17.
    16 | Pa g e be signed in the name of the firm by one of the partners, or by some person having authority to give effectual receipt for the same. 12.4 Payment may be made to the contractor through ECS /STEP. Hence Contractor has to furnish the following information to ONGC. (a) Contractor’s Bank Account No. (b) Bank Code. (c) Branch name and address. (d) MICR Code Number. 13.0 VAGUE AND INDEFINITE EXPRESSIONS 13.1 Bids qualified by vague and indefinite expressions such, as "Subject to availability" etc. will not be considered. 14.0 PERIOD OF VALIDITY OF BIDS 14.1 The Bid shall be valid for acceptance for the period of 90 Days from the date of opening of tender as indicated in the "INVITATION FOR BID/ BEC" (hereinafter referred to as validity period) and shall not be withdrawn on or after the opening of bids till the expiration of the validity period or any extension agreed thereof. 14.2 In exceptional circumstances, prior to expiry of the original bid validity period, the ONGC may request the bidder for a specified extension in the period of validity. The requests and the responses shall be made in writing. The Bidder will undertake not to vary / modify the bid during the validity period or any extension agreed thereof. Bidder agreeing to the request for extension of validity of offer shall be required to extend the validity of Bid Security correspondingly. 15.0 BID SECURITY 15.1 The Bid Security is required to protect the ONGC against the risk of Bidder's conduct, which would warrant the security’s forfeiture in pursuance to clause 16.7 15.2 Government Departments and Public Sector Undertakings are exempted from payment of Bid Security. 15.3 The Bidders not covered under Para 16.2 above must enclose with their offer (in case of two bid systems, with techno-commercial bid) bid security. The amount for bid security has been indicated in the "Invitation for Bid". 15.4 The Bid Security shall be acceptable in any of the following forms:
  • 18.
    17 | Pa g e i) Bank Draft in favour of ONGC valid for 180 days from its date of opening of technical bid. ii) Bank Guarantee in the prescribed format as per Appendix 4, valid for 30 days (Thirty) beyond the date of required validity of offer. The bank guarantee by domestic bidders will have to be given from the Nationalized / Scheduled banks, on non-judicial stamp paper as per stamp duty applicable at the place from where the bid has emanated. The non-judicial stamp paper should be in the name of the issuing bank. 15.5 ONGC shall not be liable to pay any bank charges, commission or interest on the amount of Bid Security. 15.6 Subject to provisions in Para 16.2 above, offers without Bid Security will be ignored. 15.7 The Bid Security shall be forfeited by ONGC in the following events: (a) If Bid is withdrawn during the validity period or any extension thereof duly agreed by the Bidder. (b) If Bid is varied or modified in a manner not acceptable to ONGC during the validity period or any extension of the validity duly agreed by the Bidder. (c) If a Bidder, having been notified of the acceptance of its bid, fails to furnish Security Deposit/Performance Bank Guarantee (Performance Security) within 15 days of notification of such acceptance. 15.8 The Bid Security of unsuccessful Bidders will be returned on finalization of the bid. The Bid Security of successful bidder will be returned on receipt of Security Deposit/Performance Bond (Performance Security). 15.9 OFFERS WITH FAX BID BONDS Normally offers received along with Fax Bid Bond shall not be considered. However, ONGC reserves the right to consider the offer, provided it is followed by confirmatory original Bid Bond executed in prescribed Proforma and legally operative on or before the date fixed for opening of bids (techno-commercial bid opening date in case of TWO BID SYSTEM) and received by tender inviting authority within 15 days of opening date of bids (techno-commercial bid opening date in case of Two Bid System), If Bidder fails to submit original Bid Bond with the same content as in Fax Bid Bond and in accordance with bidding document, irrespective of their status/ranking in tender, the bid will be rejected and ONGC may consider to debar the Bidder from participating against its future tenders.
  • 19.
    18 | Pa g e 15.10 TELEX/TELEGRAPHIC/TELEFAX/XEROX/PHOTOCOPY BIDS: 15.11 Telex/Telegraphic/Tele-fax/ Xerox/ Photocopy bids will not be considered. D. SUBMISSION AND OPENING OF BIDS 16.0 SEALING AND MARKING OF BIDS. 16.1 The original copy of the Bid is to be submitted in a double cover. The inner cover should be sealed and superscribed as "Tender Number: - UP14C13001 and due for opening on 06.05.2013 AT 1700 Hrs.” The outer cover should duly bear the tender number and date of closing/ opening prominently underlined, along with the address of ONGC’s office, as indicated in Invitation for Bids. The tenders are to be submitted on or before 1600 hrs. on 06.05.2013 as mentioned in NIT. 16.2 The inner cover shall also indicate the name and address of the Bidder to enable the bid to be returned unopened in case it is declared "late". 16.3 The right to ignore any offer, which fails to comply with the above instructions, is reserved. Only one bid should be included in one cover. 16.4 In case of "Two Bid System" offers are to be submitted in triple sealed covers. The first inner sealed cover will contain Techno-Commercial bids having all details but with price column blanked out. However a tick mark (√) shall be provided against each item of the price bid format to indicate that there is a quote against this item in the Priced Commercial bid. This cover will clearly be superscribed with "Techno- Commercial bid" along with tender number and item description. The second sealed inner cover will contain only the price schedule duly filled in and signed and will be clearly super scribed with “PRICE BID" along with tender number. These two covers shall be put into outer cover and sealed. The outer cover should duly bear the tender number and date of closing/ opening prominently underlined, along with the address of this office. 16.5 Price bids, which remain unopened with ONGC, will be returned to the concerned bidders within 5 (five) working days of receipt of Performance Guarantee Bond(s) from the successful bidder(s). 16.6 Any change in quotation after opening of the tender WILL NOT BE CONSIDERED. 16.7 ONGC will not be responsible for the loss of tender form or for the delay in postal transit. 17.0 DEAD LINE FOR SUBMISSION OF BIDS
  • 20.
    19 | Pa g e 17.1 The Bid must be received by the ONGC at the address specified in Invitation for Bids not later than 1500 Hrs (IST) on the notified date of closing of the tender. Offers sent by hand delivery should be put in the Tender Box at the specified office not later than 1500 Hrs. (IST) on the specified date. All out-station tenders, if sent by post, should be sent under registered cover. 18.0 LATE BIDS 18.1 Bidders are advised in their own interest to ensure that bid reaches the specified office well before the closing date and time of the bid. 18.2 Any bid received after dead line for submission of bid, will be rejected and returned unopened. 19.0 MODIFICATION AND WITHDRAWAL OF BIDS 19.1 No bid may be modified after the dead line for submission of bids. 20.0 OPENING OF BIDS 20.1 The bid will be opened at 1700 Hrs. (IST) on the date of opening indicated in "INVITATION FOR BID". The Bidder or his authorized representative may be present at the time of opening of bid on the specified date, but a letter in the form annexed at Appendix- 7 of Annexure I hereto must be forwarded to this office along with bid and a copy of this letter must be produced in the office by the person attending the opening of bid. Unless this letter is presented by him, he may not be allowed to attend the opening of bid. 20.2 In case of unscheduled holiday on the closing/opening day of bid, the next working day will be treated as scheduled prescribed day of closing/opening of bid; the time notified remaining the same. E. EVALUATION OF BIDS 21.0 EVALUATION AND COMPARISON OF BIDS 21.1 Evaluation and comparison of bids will be done as per provisions of Bid Evaluation Criteria & BEC Matrix at Annexure-IV. 22.0 UNSOLICITED POST TENDER MODIFICATIONS: 22.1 Unsolicited post-tender modifications will lead to straight away rejection of the offer.
  • 21.
    20 | Pa g e 23.0 EXAMINATION OF BID 23.1 The ONGC will examine the bids to determine whether they are complete, whether any computational errors have been made, whether required sureties have been furnished, whether the documents have been properly signed and whether the bids are generally in order. 23.2 The ONGC will determine the conformity of each bid to the bidding documents. Bids falling under the purview of “Rejection Criteria” of the bid Evaluation Criteria of the bidding document will be rejected. 24.0 SPECIFICATIONS: 24.1 The Bidder must note that its Bid will be rejected in case the tender stipulations are not complied with strictly or the services offered do not conform to the required specifications indicated therein. The lowest Bid will be determined from among those Bids, which are in full conformity with the required specifications. 25.0 CONTACTING THE ONGC No bidder shall contact the ONGC on any matter relating to its bid, from the time of the opening to the time the contract is awarded. AWARD OF CONTRACT 26.0 AWARD CRITERIA. The Corporation will award the contract to the successful bidder whose bid has been determined to be in full conformity to the bid documents and has been determined as the lowest evaluated bid. 27.0 ONGC’S RIGHT TO ACCEPT ANY BID AND TO REJECT ANY OR ALL BIDS. 27.1 ONGC reserves the right to reject, accept or prefer any bid and to annul the bidding process and reject all bids at any time prior to award of contract, without thereby incurring any liability to the affected Bidder or Bidders or any obligation to inform the affected Bidder or Bidders of the ground for ONGC’s action. The ONGC also reserves to itself the right to accept any bid in part or split the order between two or more bidders. 28.0 NOTIFICATION OF AWARD (NOA) 28.1 Prior to the expiration of the period of bid validity, the ONGC will notify the successful bidder in writing that its bid has been accepted.
  • 22.
    21 | Pa g e 28.2 The notification of award will constitute the formation of the contract. 28.3 Upon the successful bidder’s furnishing performance security, pursuant to Clause No. 15.8, the ONGC will promptly notify each unsuccessful bidder and discharge their bid securities. 29.0 MOBILISATION PERIOD Successful bidder has to mobilize & lift the exchanger within 15 days from the date of placement of LOA. 30.0 SIGNING OF CONTRACT 30.1 The successful bidder is required to sign a formal detailed contract with ONGC within a maximum period of 30 days of date of Fax order / LOI / NOA. Until the contract is signed, the Fax order/ LOI / NOA shall remain binding amongst the two parties. In case of delay in signing the contract on the part of ONGC, contractor shall be paid 80% of the applicable rates falling due as per the contractual obligations on adhoc basis, till formal signing of the contact, after which the balance of due payments shall be released / adjusted against regular bills. However no payment will be made and mobilization will not be deemed completed, when the delay is on the part of the contractor to sign the contract, as per draft contract at Annexure-II of the tender. 31.0 PERFORMANCE SECURITY 31.1 Within 15 (fifteen) days of the receipt of notification of award from the ONGC, the successful Bidder shall furnish the Performance Security in accordance with the conditions of the contract, in the Performance Security Form provided at Appendix 1 of Annexure II of the bidding documents, or another form acceptable to the ONGC. 31.2 Failure of the successful Bidder to comply with the requirement of Clause 15.7(C) shall constitute sufficient grounds for the annulment of the award and forfeiture of the bid security, in which event the ONGC may make the award to the next lowest evaluated bidder or call for new bids. 32.0 CORRESPONDENCE. 32.1 ONGC’s Telex/ telegraphic/ fax No. 022-27228211 / cable address is and Grams: COMONG, URAN. 32.2 All correspondence from Bidders/ contractor shall be made to the office of the Purchase Authority from where this tender has emanated.
  • 23.
    22 | Pa g e 32.3 All correspondence shall bear reference to bid number. 33.0 REPRESENTATION FROM THE BIDDER: Representation(s) if any, in connection with the processing of the tender may be sent directly to Dy General Manager(p), 116, Dronagiri Bhavan, Uran Plant, Uran - 400702, Dist. Raigad, Maharashtra.
  • 24.
    23 | Pa g e ANNEXURE – I APPENDIX - 1 BIDDING DOCUMENT ACKNOWLEDGEMENT PROFORMA Dated:................................. DGM(P)-I/C-Contract Cell, Oil & Natural Gas Corporation Ltd. Mumbai Region, Uran Plant, Uran-400702. Dist.-Raigad, Maharashtra State. Dear Sirs, We hereby acknowledge receipt of a complete set of Bidding Documents consisting of Five Annexure (along with their Appendices) enclosed to the "Invitation for Bid” pertaining to “ Job of Re-tubing of heat exchanger “Re-tubing of heat exchangers E-112D, E-512B and E- 2503 A/B of LPG 1, 2 & CFU Plant at Uran”. Tender No. MR /URAN/28/C/CC/ 59P/2012-13/UP14C13001 We have noted that the closing date for receipt of the tender by ONGC is 06.05.2013 at 1400 hrs. (IST) and opening at 1500 hrs. (IST) on the same day. We guarantee that the contents of the above said Bidding Documents will be kept confidential within our organization and text of the said documents shall remain the property of ONGC and that the said documents are to be used only for the purpose intended by ONGC. Our address for further correspondence on this tender will be as under: ………………………………………………………. ………………………………………………………. TELEX NO: FAX NO: TELEPHONE NO: Yours faithfully, PERSONAL ATTENTION OF: (IF REQUIRED) (BIDDER WITH SEAL)
  • 25.
    24 | Pa g e Note: This form should be returned along with offer duly signed. ANNEXURE – I Bid Submission Proforma APPENDIX - 2 Tender No............................ Contractor's Telegraphic Address: ______________________ ________________________ Telephone No. TELEX NO: FAX NO: To, DGM(P)-I/C CONTRACT CELL, Oil & Natural Gas Corporation Ltd. Mumbai Region, Uran Plant, Uran-400702. Dist.-Raigad, Maharashtra State Dear Sirs, 1. I/We hereby offer to supply the services detailed in schedule hereto or such portion thereof as you specify in the Acceptance of Tender at the price given in the said schedule and agree to hold this offer open till 05.08.2013 2. I/We have understood and complied with the "Instructions to Bidders” at Annexure - I, "Bid Evaluation Criteria" at Annexure IV and accepted the "General Terms and Conditions" at Annexure II for providing services and have thoroughly examined and complied with the specifications, drawings, Special Conditions of Contract and/or pattern stipulated at Annexure III hereto and am/are fully aware of the nature of the service required and my/our offer is to provide services strictly in accordance with the requirements. 3. The following pages have been added to and form part of this tender:- 4. Agreement at Appendix 3 on purchase of Bidding documents and submission of Tender has been duly signed and returned herewith. Yours faithfully, Signature of Bidder Address Dated Signature of witness Address
  • 26.
    25 | Pa g e Note: This form should be returned along with offer duly signed.
  • 27.
    26 | Pa g e ANNEXURE – I APPENDIX - 3 AGREEMENT No. Dated DGM(P)-I/C CONTRACT CELL, Oil & Natural Gas Corporation Ltd. Mumbai Region, Uran Plant, Uran-400702. Dist: Raigad, Maharashtra State SUB: BIDDING DOCUMENT. Ref: TENDER No. MR /URAN/28/C/CC/ 59P/2012-13/UP14C13001 ONGC and the Bidder agree that the Notice Inviting Tenders (NIT) is an offer made on the condition that the Bid would be kept open in its original form without variation or modification for a period of 90 days AND THE MAKING OF THE BID SHALL BE REGARDED AS AN UNCONDITIONAL AND ABSOLUTE ACCEPTANCE of this condition of the NIT. They further agree that the contract consisting of the above conditions of NIT as the offer and the submission of Bid as the Acceptance shall be separate and distinct from the contract which will come into existence when bid is finally accepted by ONGC. The consideration for this separate initial contract preceding the main contract is that ONGC is not agreeable to sell the NIT to the Bidder and to consider the bid to be made except on the condition that the bid shall be kept open for 90 (Ninty) days after the last date fixed for the receipt of the bids and the Bidder desires to make a bid on this condition and after entering into this separate initial contract with ONGC. ONGC promises to consider the bid on this condition and the Bidder agrees to keep the bid open for the required period. These reciprocal promises form the consideration for this separate initial contract between the parties. If Bidder fails to honour the above terms and conditions, ONGC shall have unqualified, absolute and unfettered right to encash / forfeit the bid security submitted in this behalf. Yours faithfully yours faithfully (BIDDER) (Tender Issuing Authority ONGC) (One copy of this agreement duly signed must be returned along with offer.)
  • 28.
    27 | Pa g e ANNEXURE – I APPENDIX - 4 PROFORMA OF BANK GUARANTEE TOWARDS BID SECURITY BID BOND Ref. No.................... Bank Guarantee No……….......... Dated ..………………... To, DGM(P)-I/C CONTRACT CELL Oil & Natural Gas Corporation Ltd. Mumbai Region, Uran Plant, Uran-400702. Dist.-Raigad, Maharashtra State Dear Sirs, 1) Whereas Oil & Natural Gas Corporation Ltd. Incorporated under the Companies Act, 1956, having its registered office at Jeevan Bharati, Tower-II, 124 Connaught Circus, New Delhi - 110001 - India and one of its offices at Mumbai Region, Dronagiri Bhavan, Uran Plant, Uran-400702, Dist.-Raigad, Maharashtra (hereinafter called `ONGC' which expression shall unless repugnant to the context or meaning thereof include all its successors, administrators, executors and assignees) has floated a Tender No. ________________ and M/s ____________________________ having Head/Registered office at _______________________________ (hereinafter called the 'Bidder' which expression shall unless repugnant to the context or meaning thereof mean and include all its successors, administrators, executors and permitted assignees)have submitted a bid Reference No........................ and Bidder having agreed to furnish as a condition precedent for participation in the said tender an unconditional and irrevocable Bank Guarantee of Indian Rupees (in figures)___________________ (Indian Rupees (in words)_________________ only) for the due performance of Bidder's obligations as contained in the terms of the Notice Inviting Tender (NIT) and other terms and conditions contained in the Bidding documents supplied by ONGC which amount is liable to be forfeited on the happening of any contingencies mentioned in said documents. 2) We (name of the bank)_________________ registered under the laws of_____________ having head/registered office at _________ (hereinafter referred to as "the Bank" which expression shall, unless repugnant to the context or meaning thereof, include all its successors, administrators, executors and permitted assignees) guarantee and undertake to pay immediately on first demand by ONGC, the amount of Indian Rs.______ (Indian Rupees_______ (in words) _______________ only) in aggregate at any time without any demur and recourse, and without ONGC having to substantiate the demand. Any such demand made by ONGC shall be conclusive and binding on the Bank irrespective of any dispute or difference raised by the Bidder.
  • 29.
    28 | Pa g e 3) The Bank confirms that this guarantee has been issued with observance of appropriate laws of the country of issue. 4) The Bank also agree that this guarantee shall be irrevocable and governed and construed in accordance with Indian Laws and subject to exclusive jurisdiction of Indian Courts of the place from where tenders have been invited. 5) This guarantee shall be irrevocable and shall remain in force upto ________________ which includes thirty (30) days after the period of bid validity and any demand in respect thereof should reach the Bank not later than the aforesaid date. 6) Notwithstanding anything contained hereinabove, our liability under this Guarantee is limited to Indian Rs. (in figures) _________________ (in words) ________________ only) and our guarantee shall remain in force until (indicate the date of expiry of bank guarantee) _________. We must receive any claim under this Guarantee before the expiry of this Bank Guarantee. If no such claim has been received by us by the said date, the rights of ONGC under this Guarantee will cease. However, if such a claim has been received by us by the said date, all the rights of ONGC under this Guarantee shall be valid and shall not cease until we have satisfied that claim. In witness whereof, the Bank, through its authorized officer, has set its hand and stamp on this ........ day of ........... at ..................... WITNESS NO. 1 (Signature) (Signature) Full name and official address (in legible letters) Full name, designation and official address (in legible letters) with Bank stamp. WITNESS NO. 2 (Signature) (Signature) Full name and official address (in legible letters) Attorney as per Power of Attorney No........….…….. Dated ………… Note: (i) This Bank Guarantee/all further communications relating to the Bank Guarantee should be forwarded to Chief Engineer (E), I/C Contract Cell, Room No.-102, Dronagiri Bhavan, Uran Plant, Uran –400702. (ii) Bank guarantee, duly executed as per the above format, is to enclosed with the offer
  • 30.
    29 | Pa g e INSTRUCTIONS FOR FURNISHING BANK GUARANTEE TOWARDS BID SECURITY 1. The Bank Guarantee by Indian Bidders will be given on non- judicial stamp paper as per stamp duty applicable at the place where the tender has emanated. The non-judicial stamp paper should be in name of the issuing Bank. 2. Foreign Bidders are requested to execute Bank Guarantee as per law in their country. 3. Please indicate the currency in which Bank Guarantee is being given Indian Rupees have been mentioned only for illustration. Therefore, in case where Bank Guarantee is being given in a currency other than Rupees, these terms may be deleted and replaced by relevant currency. 4. The expiry date as mentioned in Clause 5 & 6 should be arrived at by adding 30 days to the date of expiry of the bid validity unless otherwise specified in the bidding documents. 5. The Bank Guarantee by Indian bidders will be given from Nationalized/Scheduled Banks only. The Foreign bidders will give Bank Guarantees from an Indian Bank situated in their city. In case no Indian Bank is situated in bidder’s city then Bank Guarantee from foreign Bank acceptable to ONGC (whether situated in bidder's country or in India) will be considered. If any foreign bidder desires to furnish guarantee from a bank other than any Indian Bank, such bidder should furnish collateral security/guarantee/confirmation from any foreign banks operating in India or the state Bank of India.
  • 31.
    30 | Pa g e ANNEXURE – I APPENDIX - 5 CHECK LIST The bidders are advised in their own interest to ensure that the following points/aspects in particular have been complied with in their offer failing which the offer is liable to be rejected. 1. Please tick whichever is applicable and cross whichever is/are not applicable. 2. Please fill up the BEC Matrix in the given format and sign it on each page. 3. Please sign each sheet of the offer. 4. Please number the each & every page of the offer serially. 5. Please submit the tender document copy duly signed & seal on each & every page of it. 6. The checklist duly filled in must be returned along with the offer. COMMERCIAL 1.1 Whether requisite tender fee has been paid? Yes No Not Applicable 1.2 If so, furnish the following: - By IPO/Bank Draft/ Cashier's Cheque Name of the Bank/post office Value Number of IPO/Bank Draft/Cashier's Cheque/Banker’s Cheque Date of issue of IPO/Bank Draft/Cashier's Cheque/ Banker’s Cheque 1.3 Whether Bank Draft/ Bank Guarantee/ Banker’s Cheque/ cashier’s Cheque/ proof of opening of Letter of Credit for the requisite earnest money has been enclosed with the offer? Yes No Not Applicable 1.4 If so furnish the following: -
  • 32.
    31 | Pa g e i. Name of the Bank ii. Value iii. Number iv. Date of issue v. Period of validity of the Bank Draft/Bank Guarantee/ Letter of Credit. (The validity of Bank Draft should not be less than 150 days from the date of opening of tender). 1.5 Has the bidder's past experience Proforma (Appendix-6) been carefully filled and enclosed with the offer? Yes No 1.6 Whether firm prices have been quoted? Yes No 1.7 Whether rates have been quoted exactly as per the price bid format? Yes No Not Applicable 1.8 If the Bidder is seeking business with ONGC for the first time, has he given the details of the parties to whom the offered items/services have been provided in past along with their performance report? Yes No 1.9 Whether Appendices 2 & 3 of Annexure-1 of the bidding document in original, duly filled in and a confirmation that clauses of Annexure I and II are complied / accepted, enclosed with the offer? Yes No 1.10 Whether all the clauses of the bidding document are accepted? Yes No 1.11 Whether details of your registration under Sale Tax/ Central Sales Tax/ Works Contract Tax/ Service Tax have been indicated in the offer?
  • 33.
    32 | Pa g e 1.12 Whether the Bidder has quoted after taking into account various incentives and concessions permissible under statutes? Yes No Not Applicable (Signature of the Bidder & Seal of the firm) ANNEXURE – I APPENDIX - 6 BIDDERS PAST SERVICES (SIMILAR) PROFORMA SL. NO. NAME & ADDRESS OF CLIENT PERIOD DESCRIPTION OF SERVICES COMPLETED SUCCESSFULLY REMARK FROM TO 1. 2. 3. 4. 5. 6. 7. 8. 9. 10. NOTE: CERTIFICATES FROM CLIENTS TO BE ENCLOSED ALONG WITH THIS PROFORMA. Yes No Not Applicable
  • 34.
    33 | Pa g e Signature of the Bidder ___________________________ Name _________________________________________ Seal of the Company _____________________________ ANNEXURE – I Appendix - 7 AUTHORISATION LETTER FOR ATTENDING TENDER OPENING NO. Date To, DGM(P)-I/C CONTRACT CELL, Oil & Natural Gas Corporation Ltd. Mumbai Region, Uran Plant, Uran-400702. Dist.-Raigad, Maharashtra State SUBJECT: TENDER NO: UP14C13001 DUE ON 06.05.2013 Sir, Mr...............………………………………………………................. has been authorized to be present at the time of opening of above tender due on................ at ....................., on my/our behalf. Yours faithfully Signature of Bidder
  • 35.
    34 | Pa g e Copy to: I/C, Contract Cell, Room No. 116/ 111, Dronagiri Bhavan, ONGC, Uran Plant, Uran – 400 702, Dist: Raigad - for information and for production before the concerned ONGC officials at the time of opening of bids.
  • 36.
    35 | Pa g e ANNEXURE – I APPENDIX - 8 PROFORMA CERTIFICATE ON RELATIVES OF DIRECTORS OF ONGC This has reference to our proposed contract for Rs. ___________________ regarding ___________________________________________________________________________ to be entered in to with Oil and Natural Gas Corporation Limited (ONGC). For the purpose of Section 297/299 of the Companies Act, 1956, an extract given here under, we certify that to the best of my/ our knowledge: (i) I am not a relative of any Director of ONGC. (ii) We are not a firm in which a Director of ONGC or his relative is a partner. (iii) I am not a partner in a firm in which a Director of ONGC or his relative is a partner. (iv) We are not a private company in which a Director of ONGC is a Member of Director. (v) We are not a company in which Directors of ONGC hold more than 2% of the paid-up share capital of our company or vice-versa. Authorized Signatory of the Contracting Party Place: Date:
  • 37.
    36 | Pa g e ANNEXURE – I APPENDIX – 9 PROFORMA OF DECLARATION & UNDERTAKING BY BIDDER To, DGM(P)-I/C-CONTRACT CELL, Oil & Natural Gas Corporation Ltd. Mumbai Region, Uran Plant, Uran-400702. Dist.-Raigad, Maharashtra State TENDER NO. UP14C13001 Sir, 1. We ______________________________________ (name of the firm) hereby declare to the effect that neither We, nor any of our allied concerns, partners or associates or directors or proprietors involved in any capacity, are currently serving any banning orders issued by ONGC debarring them from carrying on business dealings with ONGC. 2. We ______________________________________ (name of the firm) hereby undertake that we will provide all the necessary certificates / documents for enabling ONGC to avail in put VAT Credit and CENVAT credit benefits (wherever applicable), in respect of the payments of VAT, Excise Duty, Service Tax etc which are payable against the contract (if awarded) along with documentary evidence for payment of excise duty and service tax. 3. We _______________________________________ (name of the firm) hereby undertake that we shall submit notarized copy of requisite category ( Maintenance & Repair ) of service tax registration certificate ( as per nature / service of contract ) along with first invoice submitted for payment against this purchase order , if awarded the job. 4. We _______________________________________ (name of the firm) hereby undertake that we shall obtain EPF registration number / certificate ( as per nature / service of contract ) if awarded the job & shall submit the requisite EPF registration certificate , copy of EPF remittance along with the first invoice submitted for payment against this purchase order. Also we do hereby undertake that we shall maintain EPF details of engaged contractual manpower as per statutory requirement as per enclosed EPF details Proforma given at Annexure – I, Appendix-11 @ page no.- 37 & shall comply the prevailing EPF norms/regulations/statutory guidelines laid by the central government/state government in this regard. Yours faithfully Signature of the Bidder …………………………………… Name …………………………………… Seal of the Company …………………………………… Yours faithfully
  • 38.
    37 | Pa g e Signature of Bidder with seal ANNEXURE – I APPENDIX – 10 Tender No. UP14C13001 HEALTH, SAFETY & ENVIRONMENT (HSE) MANAGEMENT DURING CONTRACTS Objective Accident free execution of all works/contracts Goals 1. To provide a HSE guide to the prospective bidders/contractors, so that they are made aware of the prevailing HSE practices at ONGC Uran Plant and expectations from the contractors. 2. This should guide them in appropriate costing of the project, and also help them execute the contracts in a safe manner. Please note that –  The HSE requirements of ONGC can be elaborated in the Pre Bid Conference with all the bidders.  There shall be Pre job safety meeting between the successful bidder and ONGC, before start of the work.  There shall be regular safety meetings during the execution of the contract.  In case, the contractor has a HSE manual; there shall be a bridging document between ONGC & the contractor for common understanding. CLAUSE I INSTRUCTIONS TO BIDDERS / CONTRACTORS ON HEALTH SAFETY & ENVIROMENT (HSE) While at ONGC Uran Plant, everyone (employees of all kind including contractual, and visitors) has to– i. Adhere to Acts, Rule and Regulations issued by Central & State Government (i.e Govt of India and Govt of Maharashtra) e.g. Petroleum Act, Factories Act, Environment Protection Act, Labour Act etc. ii. Follow ONGC’s HSE policy which is issued by the Chairman & Managing Director ONGC.
  • 39.
    38 | Pa g e iii. Follow Health, Safety & Environment practices as per national and international benchmarks. ONGC Uran plant has been certified for Quality, Health, Safety & Environment (QHSE) Integrated Management System consisting of ISO 9001:2008, ISO 14001:2004 and OHSAS 18001:2007. 4. Adhere to Standards & Codes for products and work practices followed at ONGC Uran Plant as per national and international benchmarks. e. g. IS, API, NEMA, ASTM etc. 5. Adhere to the specific rules and procedures followed at Uran plant for ensuring safety e.g.  Gate pass for entry in plant/office,  Vehicle entry permit for entry of vehicles in plant and in process area  Permit To Work system for carrying out Hot jobs, Entry to confined spaces, working at heights, Excavation, Cold works, Electrical lock out, Radiography  Incident reporting system for reporting any undesirable incident  Change Management system for carrying out any change / modification in the plant  Personal Protective Equipment to be strictly used while working  Tool Box Talk before commencement of any job The details of above systems and other safety precautions along with written procedures and document flow charts etc will be given at the time of Pre Bid conference / signing contract agreement. CLAUSE II The contractor has to particularly ensure the following – i. Medical examination – Medical fitness of the employees for undertaking a particular kind of job should be ascertained before employment. The employees deputed at Uran for work should undergo medical examination (pre employment & periodical) as per provisions of clause 73-V of Maharashtra Factories Rules 1963. ii. Working hours – of their workmen are strictly as per provisions of Factories Act.
  • 40.
    39 | Pa g e iii. Lifting machines, chains, ropes, and lifting tackles – The use/inspection/certification of lifting machines, chains, ropes, and lifting tackles should be as per provisions of clause 64 of Maharashtra Factories Rules 1963. The record of inspection/certification by competent person (approved by Directorate of Industrial Safety & Health) should be maintained at site. iv. Vehicle Entry Permit – Only the vehicles having valid permit are allowed inside the plant. The contractor shall ensure that the vehicles intended for entry in the plant fulfill the requirements of Vehicle Entry Permit. This requires that the vehicle should be in roadworthy condition, and must be fitted with PESO approved spark arrestor. Some of the necessary documents are driver license for the appropriate class of vehicle, load test certificate for the cranes, fitness certificate from RTO, permission for carrying of hazardous chemicals, insurance, PUC, registration etc. Please note that with such vehicle entry permit, the vehicle can move in white areas/roads of the plant. For entry in process area, separate permission from shift in-charge shall be obtained. v. Scaffolding – The material should be of industrially accepted high standard. Ensure that the ground is firm before erecting any scaffold. Scaffolding material should be of industrially accepted high standard, normally should be made of steel/ metallic frame and tested for the load as well as stability. It should be erected by scaffolding professionals. Scaffoldings should be inspected and certified for use daily. Record of such inspection is to be maintained. vi. Temporary electrical connections – Requisition for temporary electrical connection should be made in a standard format. The wiring should be such that, there is no scope of electrocution and burning/sparking. The earthing/bonding and the insulation should be proper and of adequate rating. Separate earth pits to be made if required. The cable and the fittings should be of proper rating. Protective relays should be installed wherever required. The electrical fittings/panels shall be weather proof/ flameproof depending on the place of its location. Plant’s hazardous area classification shall be referred for this purpose. Each feeder shall be sealed so that
  • 41.
    40 | Pa g e there is no possibility of entry of any rodent/ lizards etc. Power distribution board shall have adequate ingress protection. Rubber mat shall be placed on the floor around the distribution board. vii. Barricading – If a hot job is to be carried out within the battery limits of running unit or within hazardous area; adequate barricading in form of welding booth or barricade made from tin/asbestos sheets should be provided. viii. Simultaneous operations – Operations which are potentially hazardous must not be undertaken simultaneously. For example; blinding/de-blinding of hydrocarbon pipelines should not be done when other hot job (cutting/welding) is going on in the near vicinity. ix. Hand tools – The hand tools used must be of standard make and fit for use. If work is to be done within the battery limits of running unit or within hazardous area; utmost care shall be taken for prevention of spark while using the hand tools. The hammers and scrapers in such case should be of brass. x. Environment protection – The contractor while working in the plant area shall ensure that their activities / operations do not contravene with the Environment Protection Act 1986 and the rules therein. The contractor shall ensure that the hazardous waste generated by him is disposed of safely as per MPCB requirements. xi. Gas detection system – theTheTheThere is an existing gas (Hydrocarbon) detection system in the plant. In case of longer duration works; the contractor shall install his own hydrocarbon gas detection system with suitable number of detectors, annunciator panel and hooter within his work area. For short duration works, regular monitoring by portable gas detectors shall be done. Also, in case of any gas/fire alarm or siren from the plant or contractor’s work area, all hot jobs must be stopped immediately. xii. Excavation/Trenching/ Road cutting – As a part of excavation permit; it is required to obtain clearance from electrical, instrumentation & infocom departments. Care shall be taken for avoiding caving in of the dug up trench. This may require providing additional supports or temporary supporting structure on the inside walls or proper
  • 42.
    41 | Pa g e angle to the side walls. Adequate bank slope shall be made as per soil type. The excavated soil, stock pile or heavy equipment should be kept at least one meter away from the trench. Safe means of getting in and out of the trench should be made near to work area. Barricade shall be provided surrounding the excavation area. In case any job requires ‘road cutting’, special permission shall be obtained as per permit to work system before start of the work. xiii. Confined space entry/Vessel Entry – No person shall enter the vessel / confined space without a valid vessel entry permit. The permit requires testing of air sample in the confined space/vessel. The air in the confined space/vessel must be suitable / safe for human consumption. No person shall be allowed to work in the confined space/vessel for a longer duration. Record must be maintained for personnel entry and exit from the confined space/vessel. The work in confined spaces should be done as per Buddy system. xiv. Radiography – Only authorized persons shall handle the radioactive materials. The area must be cordoned off properly. xv. Working at height – All works above two meters height must be done with a valid Hot Work Permit. Persons must work with full body harness safety belt and harness must be secured properly. It also should be ensured that there is no other simultaneous work going on just below the work at height. xvi. Hot works – Any job involving naked flame or any job involving/creating spark or high heat are termed as Hot Works and a valid Hot Work Permit must be obtained for such jobs. This is required to be renewed in every shift. It has to be ensured that the area where such job is to be carried out, should be free from combustible materials. xvii. Material handling - No one is allowed to ride on blocks, hooks, and suspended loads. Guy ropes must not be fastened to existing equipment, pipeline, tank supports, Load must not remain supported for an unreasonable length of time by
  • 43.
    42 | Pa g e any means (Mechanical/ Hydraulic etc.). Suspended load must not be left unattended. xviii. Gas cylinder – All gas cylinders must have a valid test certificate. The contractor must use only the certified gas cylinder within their validity period. The contractor must adhere to Explosives Act 1884/ Gas Cylinder rules 2004 while using gas cylinders in the plant. xix. Machine tools – Machine tools e.g. grinders, cutter etc must be ISI certified/standard make and safe for use. xx. Housekeeping – The contractor shall maintain proper housekeeping in their work area in order to ensure safety and good environment. It should be ensured that the work area is left clean at end of the work. Contractor’s equipment, tools and tackles should not cause hindrance in the escape route. xxi. Illumination – It should be ensured that, all the works are carried out in adequate light for proper visibility. xxii. Training & Competency – The contractor employees should undergo safety briefing, tool box talk and formal training in safety (in-house or external). In case of contracts, involving a large number of persons, an adequate number of persons must be trained in first aid. It will be contractor’s responsibility to ensure that their employees are competent to the perform the job assigned to them. xxiii. Security – The contractor must employ personnel only after police verification. The personnel must have valid gate pass for entry in the plant. The passes shall be renewed periodically and on completion of work. The passes shall be returned to the security section without fail. It also must be ensured that, their employees leave the plant premise after duty hours. xxiv. PPE – The contractor must provide standard quality Personal Protective Equipment (PPE) like cotton dungarees, industrial shoes & helmet. Apart from these, appropriate PPE depending on the job like safety goggle, safety belt, gloves, ear plugs/muffs, dust masks, chemical suit, welding gloves and glass etc should be
  • 44.
    43 | Pa g e provided to his workmen before start of the work and ensure that they wear it while working. xxv. Emergency Response Plan – The contractor should have an Emergency Response Plan for the job undertaken. This should dovetail with ONGC’s Disaster Management Plan. xxvi. Audit/Inspection – The HSE performance of the contractor is subject to audit/inspection by ONGC officers. xxvii. Accident/Incident reporting – All minor/major accidents/incidents shall be reported /recorded as per existing procedure at ONGC Uran Plant. Also any unsafe condition should be brought to the notice of Engineer in-charge. The contractor shall submit a report on HSE performance during periodic project review meeting. CLAUSE III GENERAL SAFETY & SECURITY NORMS WHILE WORKING IN ONGC DO’S 1. Ensure an operational area entry pass (pink colour) before entry into operational areas (Operational areas include CSU, GSU, LPG, CFU, C2C3, LAN/LPG/C2C3 storage, Terminal, Slug catcher, Flare area, gas compressors etc.). Those who do not possess the valid pass should not enter the operational area. 2. Before starting any job, make sure that you have obtained necessary ‘permit to work’ from ONGC. 3. Tool Box Talk prior to commencement of any hot job is mandatory. 4. In case of chemical spill on the body or in the eyes, use safety shower to wash immediately. Contact Occupational Health Centre (Tel No. 4555 to 4559) or bring the affected person to the doctor immediately. 5. Adequate number of certified First Aiders should be available with the contractor at site. In case of emergency, these first aiders should respond immediately. ONGC Doctor is available at Occupational Health Center/Dispensary. 6. Use only safety torch certified for use in hazardous areas.
  • 45.
    44 | Pa g e 7. Remove all flammable materials from the site of welding (e.g. dry grass, gunny bags, tarpaulin, wooden plank etc.) 8. In case of fire, inform fire station (Tel No. 4444, 4445, 4446) immediately. 9. Use only brass tools (or non sparking tools) while working inside the operational area. 10. Ensure that during arc welding, the electrode holder is effectively insulated and properly maintained. 11. Use 3-pin connection for portable grinders. 12. Provide handrails at the sides of the scaffold walk ways to avoid any fall. 13. Avoid shock loads e.g. dropping heavy objects or jumping on the platforms. 14. Keep wrenches and spanners free of oil and grease to avoid spillage from hand. While working at height on scaffold, use proper container to keep the tools when not in use. 15. Replace or repair hand tools e.g. hammers, wrenches, screw drivers etc. if found defective. 16. Dispose off all oil rags, rubbish and papers into proper bins. 17. Report even smallest injury to the doctor and also to the supervisor. 18. Park the crane in safer place, when not in use, with parking brake. 19. Keep tall portable ladders in a safe place, when not in use. 20. Wear safety belt and lifeline while working at height. 21. Obtain permit for carrying vehicle, crane, engine driven pump, engine driver vibrator and concrete mixer into operating plant area. 22. Beware of the height while moving below overhead electric transmission lines. 23. Check periodically the condition of slings. Use only tested slings for lifting of loads. 24. The contractor’s employees should not use compressed air to clean clothes, hair or hands, as the pressure is high enough to cause injury. Explosive liquids such as Naphtha etc shall not be used as cleaning agent. Use only approved cleaning agents. 25. High pressure water from fire water or service/cooling water lines should not be used for cleaning/bathing.
  • 46.
    45 | Pa g e DONT’S 1. Do not carry lighters, matches, transistors, ordinary torches, camera or any other electronic/ electrical items inside the operational area. 2. Do not jump over/ cross the operational area fencing. 3. Never smoke inside the plant. 4. Do not use any portable hand lights in any location inside the operational area unless explosion proof. 5. Do not use welding set, if it is not properly earthed. 6. Never use any make shift electrical connections. There should not be any loose electrical connection. 7. Never carry electrode holder in the arm, since it is often sweaty. 8. Do not enter any confined space like sump, tank, vessel etc. without permit. 9. Do not cut any road without permit. 10. Do not hook up any job or carry out any welding, cutting close to the operational area without permit. 11. Do not stand on any piping/tubing. Also do not tie any rope/sling to any piping/tubing. 12. Do not operate any kind of valve, switch, push buttons etc without permission of ONGC Engineer In-charge. 13. While using crane, do not swing a load near people. 14. Never look directly to the arc produced when welding without eye protection. 15. Do not panic in any emergency. On hearing of plant’s main siren, stop all hot jobs and contact your supervisor and ONGC engineers at site for further action. 16. Do not block the ways for emergency aid. 17. Do not rest under moving load of crane. 18. Do not walk along the sides of any excavation. 19. Do not use a defective tool. 20. Do not run or shout inside plant unnecessarily. 21. Do not loiter near any operating unit, unless you have a job to perform.
  • 47.
    46 | Pa g e 22. Do not walk on pipelines. 23. Do not play with compressed air hose, steam etc. 24. Do not use full/ empty drums as work support for any job or in place of ladder. 25. Do not use air, water, steam hoses unless they are properly secured. 26. Do not try to dry your clothes on steam lines or any other hot surfaces. 27. Do not leave tools or materials at height where they may accidentally fall on persons below. 28. Do not consume alcoholic drinks within the plant area. 29. Do not use shoes with nails. 30. Do not misuse, tamper any fire fighting equipments. 31. Do not use fire water for any other purpose (e.g. washing hands or clothes etc.) 32. Never go nearer to any high voltage source, unless authorized. 33. Do not park the crane in any place to cause hindrance to others. 34. Never over load the crane or any other lifting device. Notice safe working load (SWL) should be displayed on the lifting device. 35. Do not use a ladder, which is defective in any respect e.g. broken, missing or split side rails or rungs. 36. Do not throw rubbish here and there. 37. Never misuse/ tamper protective kits. 38. Do not allow accumulation of dry grass/vegetation at any place. CLAUSE IV MISCONDUCT The under mentioned acts of the employees of the Contractor, shall amount to misconduct and the employees concerned shall be liable to disciplinary action: 1. Tampering Fire Extinguisher in no Fire condition. 2. Using Fire buckets, Fire hydrant, delivery hoses & branches for any purpose other than fire fighting without the knowledge of Fire Department. 3. Smoking in ONGC premises.
  • 48.
    47 | Pa g e 4. Carrying gas lighter, match box/ battery operated (unauthorized) equipment in operational areas. 5. Carrying vehicles without spark arrestor in operating areas. 6. Giving false fire alarm, intentionally. 7. Fighting, Gambling, Horseplay or other misconduct is not permitted on the site. Threatening another employee or visitor will not be tolerated. Non- compliance will result in disciplinary measure, which could include immediate expulsion. 8. Pushing or crowding at elevators, entrances/ exits or on stairways or on board of vehicles. This may endanger oneself as well as others. CLAUSE V The contractor shall maintain following records at the worksite – 1. Pre employment & Periodic Medical examination of their workmen 2. Inspection / testing of tools & tackles by competent authority of Govt of Maharashtra 3. Work permits/lockouts and vehicle entry permits 4. Leave with wages 5. Duty roaster 6. Wages and Provident Fund 7. Any other document required by law
  • 49.
    48 | Pa g e ANNEXURE – I Appendix – 11 Compliance by the contractor of EPF norms/regulations as per statutory requirement. EPF Details to be maintained & provided by the contractor Proforma – “PFD” SUB: PARTICULARS OF PF CONTRIBUTION FOR THE MONTH OF YEAR (1) Name of the Firm/ Agency/ Contractor ___________________________ Nature of Contract : Job/ Service contract, AMC, (2) Postal address of the Contractor ______________________________ (3) Phone No. of the Contractor __________________________________ (4) Fax No. of the Contractor ___________________________________ (5) Address of PF office from where EPF Code No. has been allotted: ____________________ (6) EPF Code No. allotted by PF office _____________________ (14) Details of contract labour engaged by the contractor Categor y No. of Workers Prevailin g Min. wages Unskille d
  • 50.
    49 | Pa g e (7) Address of ESIC office from where ESI Code No. has been allotted: ___________________ (8) ESI Code No. allotted by ESIC Office (9) Period of Contract : From____________ to ______________ (a) Extension period of contract, if any From _________ to _______ (b) Place where contract workmen are working (10) Labour Licence No. ________________________ dtd. ____________ (11) Validity period of Labour Licence From ___________ To _____________ (12)Details of Deposition of contribution towards EPF (a) EPF Challan No. ___________ Amount ____________ Date ___________ (13)Details of Deposition of contribution towards ESI (a) ESI Challan No. _______________ Amount _________________ Date _________ Semi skilled Skilled Highly skilled Total CERTIFIED THAT I have paid the notified minimum wages to my contractual workers as per the agreement. The above information is correct to the best of my knowledge. In case nay discrepancies or irregularties is /are noticed in this agreement, then ONGC is free to inform the PF/ESIC Authorities.
  • 51.
    50 | Pa g e Within one month on completion/expiry of the contract, I shall fill up the prescribed Forms for withdrawal or transfer of PF/Pension Account in favour of my contractual workmen under control and intimate to Principal Employer. Before the completion of contract, I shall serve one month notice to all my contractual workers, informing that their services will be terminated. Within one month on completion/expiry of the contract, I shall pay all the dues/ terminal dues such as leave with wages, bonus (if applicable), Gratuity (if applicable), to all my contractual workmen, failing which my Bank Guarantee/ Security Deposit may be withheld by ONGC. Date: Place: Signature & Seal of the Contractor
  • 52.
    51 | Pa g e ANNEXURE – I APPENDIX – 11A FORMAT FOR REGRET LETTER TO BE SUBMITTED ON THE LETTER HEAD OF THE BIDDER (IN CASE THE BIDDER IS NOT SUBMITTING HIS OFFER) Ref No: ___________ Dated: ________ To, DGM(P)-I/C-CONTRACT CELL, Oil & Natural Gas Corporation Ltd Mumbai Region, Uran Plant, Uran-400702 Dist.-Raigad, Maharashtra State Sub: Regret Letter Ref: Tender No UP14C13001 Dear Sir, With reference to subject tender, we are unable to quote due to the reason mentioned below (√ marked). We are returning the total tender document to you. 1) The item/service does not fall in our product/servicing range 2) We do not meet BEC (Bid Evaluation Criteria) as specified in tender 3) We cannot meet the technical specifications as specified in tender 4) There is an order overbooking 5) Any other reason (please specify) 6) We need some more time for submission of offer and hence request for extension of bid submission date Yours faithfully, (Seal & Signature of the Bidder)
  • 53.
    52 | Pa g e ANNEXURE – I APPENDIX - 12 PARTICULARS OF VENDOR REQUIRED FOR PURPOSE OF MAKING PAYMENT THROUGH ELECTRONIC PAYMENT MECHANISM (PLEASE ATTACH ONE CANCELLED CHEQUE) (1) Vendor/Customer Name: _______________________________________ (2) Complete Address _______________________________________ _______________________________________ _______________________________________ _______________________________________ (3) Bank’s Name _______________________________________ (4) Beneficiary A/c No. _______________________________________ (5) Account Type _______________________________________ (6) Branch Name _______________________________________ (7) Bank Address _______________________________________ _______________________________________ _______________________________________ (8) MICR Code _______________________________________ (9) Bank IFSC Code : _______________________________________
  • 54.
    53 | Pa g e Authorized Signatory with Name & seal of Bidder ANNEXURE – I APPENDIX – 12A FORMAT OF AGREEMENT BETWEEN BIDDER AND THEIR PARENT COMPANY (TO BE MADE ON STAMP PAPER OF REQUISITE VALUE AND NOTORISED) This agreement made this day of month year by and between M/s. ____________________(Bidder's particular) ___________ hereinafter referred to as bidder of the first part and M/s. (Parent Company's particulars) hereinafter referred to as "Parent Company" on the other part, whereas M/s. Oil & Natural Gas Corporation Limited (hereinafter referred to as ONGC) has invited offers vide their tender No. _________________________________________________________________________ for and whereas M/s. _________________________________________________________________________ (Bidder) intends to bid against the said tender and desires to have a financial and technical support of M/s. _______________(Parent Company) and whereas Parent Company represents that they have gone through and understood the requirements of subject tender and are capable and committed to provide the services as required by the bidder for successful execution of the contract, if awarded to the bidder. Now, it is hereby agreed to by and between the parties as follows: 1. ______________M/s. (Bidder) will submit an offer to ONGC for the full scope of work as envisaged in the tender document as a main bidder and liaise with ONGC directly for any clarifications etc. in this context. 2. M/s.(Parent Company) as a sub-contractor undertakes to provide financial, technical support and expertise, expert manpower and procurement assistance and project management to support the bidder to discharge its obligations as per the Scope of work of the tender / Contract for which offer has been made by the Parent Company and accepted by the bidder.However, as a minimum, following services will be necessarily covered by the Parent Company: 3. This agreement will remain valid till validity of bidder's offer to ONGC including extension if any and till satisfactory performance of the contract in the event the contract is awarded by ONGC to the bidder 4. It is further agreed that for the performance of work during contract period bidder and Parent Company shall be jointly and severely responsible to ONGC for satisfactory execution of the contract. 5. However, the bidder shall have the overall responsibility of satisfactory execution of the contract awarded by ONGC. In witness whereof the parties hereto have executed this agreement on the date mentioned above. For and on behalf of For and on behalf of (Bidder) (Parent Company) Witness:
  • 55.
    54 | Pa g e 1) 1) 2) 2) ANNEXURE – I APPENDIX – 12B PARENT COMPANY GUARANTEE DEED OF GUARANTEE THIS DEED OF GUARANTEE executed at ........................ this .......... day of ............. by M/s ................................... (mention complete name) a company duly organized and existing under the laws of...........................(insert jurisdiction/country), having its Registered Office at ......................................................hereinafter called "the Guarantor" which expression shall, unless executed by or repugnant to the subject or context thereof, be deemed to include its successors and permitted assigns. WHEREAS M/s Oil & Natural Gas Corporation Limited, a company duly registered under the Companies Act 1956, having its Registered Office at 8th floor, Jeevan Bharti, Tower-ll, 124, Indira Chowk (Connaught Circus), New Delhi, India, and having an office, amongst others, at ......................... (insert purchase centre address) hereinafter called "the Corporation" which expression shall excluded by o r repugnant to t he context t hereof, bed eemed to i nclude i ts successor And assigns, invited tender number ..................for ..........on .................. M/s ............................ (mention complete name), a company duly organized and existing under the laws of ..................... (insert jurisdiction/country), having its Registered Office at .............................. (give complete address) hereinafter called "the Company" which expression shall, unless excluded by or repugnant to the subject or context thereof, be deemed to include its successor and permitted assigns, *a wholly owned subsidiary of the Guarantor, have, in response to the above mentioned tender invited by the Corporation, submitted their bid number .............................. to the Corporation with one of the condition that the Company shall arrange a guarantee from its parent company guaranteeing due and satisfactory performance of the work covered under the said tender i ncluding any change. therein as may be deemed appropriate by the Corporation at any stage. The Guarantor represents that they have gone through and understood the requirement of the above said tender and are capable of and committed to provide technical, financial and such other supports as may be required by the Company for successful execution of the same.
  • 56.
    55 | Pa g e The Company and the Guarantor have entered into an agreement dated as per which the Guarantor shall be providing technical, financial and such other supports as may be necessary for performance of the work relating to the said tender. Accordingly, at the request of the Company and in consideration of and as a requirement for the Corporation to enter into agreement(s) with the Company, the Guarantor hereby agrees to give this guarantee and undertakes as follows: 1. The Guarantor (Parent Company) unconditionally agrees that in case of non- performance by the Company of any of its obligations in any respect, the Guarantor shall, immediately on receipt of notice of demand by the Corporation, take up the job without any demur or objection, in continuation and without loss of time and without any cost to the Corporation and duly perform the obligations of the Company to the satisfaction of the Corporation. In case the Guarantor also fails to discharge its *strike out, if not applicable obligations herein and complete the job satisfactorily, the Corporation shall have absolute rights for effecting the execution of the job from any other person at the risks and costs of the Guarantor. The Guarantor also undertakes to make good and loss that may be caused to the Corporation for non-performance or unsatisfactory performance by the Guarantor or the Company of any of their obligations. 2. The G uarantor agrees that the Guarantee herein contained shall remain valid and enforceable till the satisfactory execution and completion of the work (including discharge of the warranty obligations) awarded to the Company. 3. The Guarantor shall be jointly with the Company as also severally responsible for satisfactory performance of the contract entered between the Company and the Corporation. 4. The liability of the Guarantor, under this Guarantee, is limited to the value of the contract entered between the Company and the Corporation i.e. up to ................. This will, however, be in addition to the forfeiture of the Performance Guarantee furnished by the Company. 5. The Guarantor represents that this Guarantee has been issued after due observance of the appropriate laws in force in India. The Guarantor hereby undertakes that the Guarantor shall obtain and maintain in full force and effect all the governmental and other approvals and consents that are necessary and do all other acts and things necessary or desirable in connection therewith or for the due performance of the Guarantor's obligations hereunder. 6. The Guarantor also agrees that this Guarantee shall be governed and construed in
  • 57.
    56 | Pa g e accordance with the laws in force in India and subject to the exclusive jurisdiction of the courts of.............. , India. 7. The Guarantor hereby declares and represents that this Guarantee has been given without any undue influence or coercion from any person and that the Guarantor has full understood the implications of the same. 8. The Guarantor represents and confirms that the Guarantor has the legal capacity, power and authority to issue this Guarantee and that giving of this Guarantee and the performance a nd o bservations o f t he o bligations hereunder d o notc ontravene a ny existing law or any judgement. For & on behalf of (Parent Company) Witness : 1. 2.
  • 58.
    57 | Pa g e ANNEXURE - II CONTRACT AND GENERAL CONTRACT CONDITIONS (To be signed with the successful bidder) This CONTRACT is made and entered into on this …..day of …Two thousand and …. by and between OIL & NATURAL GAS CORPORATION LIMITED, a CORPORATION registered under the Companies Act 1956, having its registered office at Jeevan Bharati, Tower-II, 124, Connaught Circus, New Delhi- 110 001, India and one of its work center at Mumbai Region, Uran Plant, Uran-400702, Dist-Raigad, Maharashtra State (hereinafter referred to as “CORPORATION” which expression shall include its successors, administrators, executors and assignees) on the one part and M/s ……………., a company registered under the companies Act with its Registered office at ……… referred to as the “CONTRACTOR” (which expression shall include its successors, administrators, executors and permitted assignees) on the other part. Whereas CORPORATION is desirous of …………… (Description of services) for carrying out Corporation’s operations conforming to specifications as set forth in the Scope of Work at Annexure-III of this agreement. And Whereas the CONTRACTOR represents that it has the necessary experience for carrying out CORPORATION's operations as referred to herein and has submitted a bid for providing
  • 59.
    58 | Pa g e the required services against CORPORATION’s Tender No………. all in accordance with the terms and conditions set forth herein and any other reasonable requirements of the CORPORATION from time to time. And Whereas CORPORATION's has accepted the bid of the CONTRACTOR and has placed Fax order / Letter of Intent /Notification Of Award vide its letter ……….. dated…. On the CONTRACTOR. Now it is hereby agreed to by and between the parties as under: 1.0 DEFINITIONS: 1.1 Unless inconsistent with or otherwise indicated by the context, the following terms stipulated in this CONTRACT shall have the meaning as defined hereunder. 1.2 CONTRACT Shall mean a written CONTRACT signed between ONGC and the CONTRACTOR (the successful bidder) including subsequent amendments to the CONTRACT in writing thereto. 1.3 CORPORATION/ ONGC: Shall mean OIL & NATURAL GAS CORPORATION LTD., India and shall include its legal representatives, successors and permitted assignees. 1.4 SITE Shall mean the place in which the operations/services are to be carried out or places approved by the ONGC for the purposes of the CONTRACT together with any other places designated in the CONTRACT as forming part of the site. 1.5 CORPORATION’S SITE REPRESENTATIVE/ENGINEER Shall mean the person or the persons appointed by ONGC from time to time to act on its behalf at the site for overall co-ordination, supervision and project management at site. 1.6 CONTRACTOR:
  • 60.
    59 | Pa g e Shall mean any person/ persons/ firm/ company etc. to whom work has been awarded and whose bid has been accepted by ONGC and shall include its authorized representatives, successors and permitted assignees. 1.7 SUB-CONTRACT: Shall mean order/contract placed by the CONTRACTOR for any portion of the CONTRACTOR work sub-letted with necessary written consent of ONGC on third party. Such sub-letting shall not relieve the CONTRACTOR from any obligation, duty or responsibility under the contract. 1.8 SUB-CONTRACTOR: Shall mean any person or persons or firm or their legal representatives, successors, assignees to whom part of CONTRACTOR has been sub-letted by the CONTRACTOR after necessary consent of ONGC. 1.9 CONTRACTOR’S REPRESENTATIVE Shall mean such person/or persons duly appointed representative at the site and base as the CONTRACTOR may designate in writing to the ONGC as having authority to act for the CONTRACTOR in matters affecting the work and to provide the requisite services. 1.10 CONTRACT PRICE Shall mean the sum accepted or the sum calculated in accordance with the rates accepted by ONGC and amendments thereof, and shall include all fees, registration and other charges paid to statutory authorities without any liability on ONGC for any of these charges. The prices will remain firm during currency of the CONTRACTOR unless specifically agreed to in writing by ONGC. 1.11 DAY Shall mean a calendar day of twenty-four (24) consecutive hours beginning at 0000 hours with reference to local time at the site. 1.12 EQUIPMENT/MATERIALS/GOODS:
  • 61.
    60 | Pa g e Shall mean and include any equipment, machinery, instruments, stores, goods which CONTRACTOR is required to provide to the ONGC for/under the CONTRACTOR and amendments thereto. 1.13 WORKS / OPERATIONS: Shall mean all work to be performed by the CONTRACTOR as specified in the Scope of Work under this CONTRACT. 1.14 GUARANTEE/ WARRANTEE: Shall mean the period and other conditions governing the warranty/guarantee of the works as provided in the CONTRACT. The contractor shall warrant that every work executed hereunder shall be free from all defects and faults in materials, workmanship, handling, etc. for a period of 12 (Twelve) months from the date of successful completion of the job and shall be of the highest grade and consistent with established and accepted standard of materials and workmanship of the type contracted for and in full conformity with the design, drawing and specifications. If during the aforesaid period the work or the part of the work is discovered to be defective or faulty or not in conformity with the specifications (decision of ONGC on that behalf being final and binding on the contractor), then the ONGC shall be entitled for the cost of work so found defective and also of damages sustained as a result of such defective work. The contractor shall, if required, also carry out repairs/replacement free of cost or at the option of the ONGC make payment to ONGC within two months of receipt of advice, the value thereof at the contract price and such other expenditure and damages as may arise by reason of the breach of condition therein specified. Nothing herein contained shall or prejudice against any other right of the ONGC on that behalf or otherwise. Where the Contractor does not directly execute the work itself and the warranty given by the person/firm carrying out such work on their behalf deviates from the above said warranty, it shall be responsibility of the contractor to abide the warranty stipulated by the ONGC. 1.15 MOBILISATION:
  • 62.
    61 | Pa g e Shall mean rendering the equipment fully manned and equipped as per CONTRACTOR and ready to begin work at site designated by ONGC after ONHIRE survey and ONGC’s acceptance thereafter. The date and time of ONGC’s acceptance of ONHIRE survey will be treated as the date and time of mobilization. 1.16 DEMOBILISATION: Shall mean the removal of all things forming part of the mobilization from the site of ONGC. The date and time of OFFHIRE survey shall be treated as the date and time of demobilization. 1.17 DRAWINGS: Shall mean and include all Engineering sketches, general arrangements/ layout drawings, sectional plans, all elevations, etc. related to the CONTRACTOR together with modification and revision thereto. 1.18 SPECIFICATIONS: Shall mean and include detailed description, statements to technical data, performance characteristics, and standards (Indian as well as International) as applicable and as specified in the CONTRACT. 1.19 INSPECTORS: Shall mean any person or outside Agency nominated by ONGC to inspect equipment, materials and services, if any, in the CONTRACTOR stage-wise as well as final as per the terms of the CONTRACT. 1.20 TESTS: Shall mean such process or processes to be carried out by the CONTRACTOR as are prescribed in the CONTRACT considered necessary by ONGC or their representative in CONTRACT to ascertain quality, workmanship, performance and efficiency of equipment or services thereof. 1.21 FACILITY Shall mean all property of the ONGC owned or hired by ONGC.
  • 63.
    62 | Pa g e 1.22 THIRD PARTY Shall mean any group, CORPORATION, person or persons who may be engaged in activity associated with the work specified but who shall remain at an arm’s length from the work and who shall not have a direct responsibility or authority under the terms of this CONTRACT. 1.23 APPROVAL: Shall mean and include the written consent duly signed by ONGC or their representative in respect of all documents, drawings or other particulars in relation to the CONTRACT 2.0 SCOPE OF WORK / CONTRACT: Scope of the CONTRACTOR shall be as defined in the CONTRACT, specifications, drawings and Annexures thereto at Annexure-IV. 3.0 DURATION OF THE CONTRACT: The contract shall be valid for a period of 6 Months from the date of placement of LOA. 4.0 NOTICES AND ADDRESSES: For the purposes of this CONTRACT, the addresses of the parties will be as follows and all correspondence and notices in relations to the present CONTRACT sent to the parties at the addresses mentioned below shall be deemed to be sufficient service of notice on the parties. All such notices as well as reports, invoices and other relevant material shall be addressed to the parties as per the address given below: 4.1 OIL & NATURAL GAS CORPORATION LIMITED For CONTRACT related communication DGM(P)-I/C CONTRACT CELL, 116, Dronagiri Bhavan, Mumbai Region,
  • 64.
    63 | Pa g e Uran Plant, Uran-400702, Dist.- Raigad, Maharashtra State. FAX: 022-27222811 For operations, reports and payments a. Designated Engineer-in-Charge for contract execution, report & bill / payment certification & verification. b. Bills are to be raised in the name of Dy. General Manager (F&A), ONGC, Uran Plant, Uran. With a copy to: Shri B. B.NAYAK, DGM (P) – I/C Contract Cell 116, Dronagiri Bhavan, Mumbai Region, Uran Plant, Uran-400702, Dist.- Raigad, Maharashtra State. FAX: 022-27222811 4.2 CONTRACTOR’S REGISTERED OFFICE AND ADDRESS ……………………………………… ……………………………………… ……………………………………… Fax No……………………………… 5.0 DUTIES AND POWER / AUTHORITY: 5.1 The duties and authorities of the ONGC’s Engineer-in-Charge OR Site Representative are to act on behalf of the ONGC for: (i) Overall supervision, co-ordination and Project Management at site (ii) Proper utilization of equipment and services. (iii) Monitoring of performance and progress & Payment thereof.
  • 65.
    64 | Pa g e (iv) Commenting/ countersigning on reports made by the Contractor’s representative at site in respect of works, receipts, consumption etc. after satisfying himself with the facts of the respective cases. (v) He shall have the authority, but not obligation at all times and any time to inspect/test/examine/ verify any equipment machinery, instruments, tools, materials, personnel, procedures and reports etc. directly or indirectly pertaining to the execution of the work. However this shall not construe to imply an acceptance by the inspector. Hence, the overall responsibility of quality of work shall rest solely with the CONTRACTOR. (vi) Each and every document emerging from site in support of any claim by the contractor has to have the countersignature/ comments of the ONGC’s representative/engineer without which no claim will be entertained by the ONGC. 5.2 CONTRACTOR’S REPRESENTATIVE: (i) The Contractor’s representative shall have all the powers requisite for the performance of the works. (ii) He shall liaise with ONGC’s representative for the proper co-ordination and timely completion of the works and on any matter pertaining to the works. (iii) He will extend full co-operation to ONGC’s representative/inspector in the manner required by them for supervision/inspection/observation of equipment, material, procedures, performance, reports and records pertaining to works. (iv) To have complete charge of Contractor’s personnel engaged in the performance of the work and to ensure compliance of rules and regulations and safety practice. 6.0 CONTRACT DOCUMENT: 6.1 Governing language:
  • 66.
    65 | Pa g e The governing language for the CONTRACT shall be English. All CONTRACT documents and all correspondence and communication to be given and all other documentation to be prepared and supplied under the CONTRACT shall be written in English and the CONTRACT shall be construed and interpreted in accordance with English language. 6.2 Entire Agreement: The CONTRACT constitutes the entire agreement between the ONGC and the CONTRACTOR with respect to the subject matter of the CONTRACT and supersedes all communication, negotiations and agreement (whether written or oral) of the parties with respect thereto made prior to the date of this agreement. 6.3 Save where the context otherwise requires, words imparting singular number shall include the plural and vice versa and words imparting neutral gender shall include masculine or feminine gender and vice versa. 6.4 Modification in Contract: All modifications leading to changes in the Contract with respect to technical and/or commercial aspects, including terms of delivery shall be considered valid only when accepted in writing by ONGC by issuing amendment to the Contract. ONGC shall not be bound by any printed conditions, provisions in the Contractor’s BID, forms of acknowledgement of Contract, invoice, packing list and other documents which purport to impose any condition at variance with or supplement to Contract. 6.5 Assignment: The CONTRACTOR shall not, save with the previous consent in writing of the ONGC, sublet/SUB-CONTRACT, transfer or assign the CONTRACTOR any part thereof in any manner whatsoever. However, such consent shall not relieve the CONTRACTOR from any obligation, duty or responsibility under the CONTRACT and CONTRACTOR shall be fully responsible for the services hereunder and for the execution and performance of the CONTRACT. 6.6 Waivers and amendments:
  • 67.
    66 | Pa g e a) Waivers: - It is fully understood and agreed that none of the terms and conditions of this CONTRACT shall be deemed waived by either party unless such waiver is executed in writing only by the duly authorized agents or representative of both the parties. The failure of either party to execute any right shall not act as a waiver of such right by such party. b) Amendments: - It is agreed that CONTRACTOR shall carry out work in accordance with the completion program to be furnished by the CORPORATION, which may be amended from time to time by reasonable modifications as CORPORATION sees fit. 7.0 REMUNERATION AND TERMS OF PAYMENT 7.1 CORPORATION shall pay to CONTRACTOR for the services, to be provided by the CONTRACTOR as per the Scope of Work (Annexure-III), as per the price Schedule at Annexure- III The rates payable, shall be firm during the entire CONTRACT period. 7.2 All Bills along with relevant supporting documents shall be submitted in triplicate addressed to the DY General Manager (F&A), ONGC, Dronagiri Bhavan, Mumbai Region, Uran Plant, Uran-400702, Dist.- Raigad, Maharashtra State. FAX: 022- 27222811 7.3 Invoices with original supporting documents duly countersigned by the CORPORATION’s representative/ engineer wherever applicable will be submitted monthly by the CONTRACTOR to CORPORATION and payment shall be made within 21 (twenty one) calendar days from the date of receipt of invoice at the above office. The original invoice should also accompany the following documents/details: 1) Along with first invoice: Following documents / details should be invariably furnished along with the first invoice: (a) Copy of valid registration certificate under the Service Tax rules. (b) Particulars required for making payments through ‘Electronic Payment Mechanism’, in accordance with the clause on ‘MODE OF PAYMENT’ appearing in Annexure-I (i.e. ‘Instructions to bidders’) of bid document. (c) Mobile No. (d) e-mail ID.
  • 68.
    67 | Pa g e 2) In case of Periodical / Monthly payment: a) Invoice (i.e. Tax invoice as per relevant Service Tax rules, in original and duplicate, clearly indicating Service Tax registration number, Service Classification, Rate and amount of Service Tax shown separately). b) Insurance policies and proof of payment of premium (As applicable). c) Details of statutory payments like PF, ESI and EPF etc. (As applicable). d) Undertaking by the contractor regarding compliance of all statutes. e) Certificate by the contractor stating that labor have been paid not less than minimum wages. 7.4 In the event of any dispute in a portion or whole of any invoice, the CORPORATION shall make payment of undisputed portion and shall promptly notify the Contractor’s representative in writing for the remaining portion in CONTRACT to mutually resolve the dispute and if resolved in part or full, payment shall be made to the CONTRACTOR within 30 days of such settlement. 7.5 No advance payment and mobilization / demobilizations charges at any stage and at any time will be made to the contractor. 100% payment for the quoted item shall be made within 21 calendar days after satisfactorily completion of exchanger job duly inspected & certified by user representative/EIC as per scope of work, if the Performance Bank Guarantee for Security Deposit is submitted as per BEC Clause B.2.9 And raised the invoice as per Clause No 7.3 of Annexure II of Tender document 7.6 The bill is to be duly certified & verified for payment by Engineer-In-Charge. The bill of the work shall be cleared only after submitting the proof of surrender of all photo gate passes issued to the contractor. The proof of surrender of photo gate passes has to be obtained from issuing authority, and to be submitted to Engineer- In-Charge before getting cleared the final bill. The bill is to be duly certified & verified for payment by Engineer-In-Charge. Deduction of Taxes, Duties, Levies and Service Tax etc. shall be made as per applicable laws.
  • 69.
    68 | Pa g e 7.7 Receipts for payment made on account of a work, when executed by a firm on partnership must also be signed by the serving partners, except where the contractors are described in their tenders as a firm in which case the receipts must be signed in the name of the firm by one of the partners, or by some person having authority to give effectual receipt for the same. 7.8 ONGC's right to question the amounts claimed Payment of any invoice shall not prejudice the right of the Operator to question the allow ability under this Agreement of any amounts claimed therein, provided ONGC, within one year beyond the expiry of each CONTRACT year, delivers to CONTRACTOR, written notice identifying any item or items which it questions and specifying the reasons therefore. Should ONGC so notify CONTRACTOR, such adjustment shall be made, as the parties shall agree. These provisions shall be reciprocal for similar rights to the CONTRACTOR. The CONTRACTOR shall provide on demand a complete and correct set of records pertaining to all costs for which it claims reimbursement from ONGC and as to any payment provided for hereunder, which is to be made on the basis of Contractor’s costs. 8 CLAIMS, TAXES & DUTITES, FEES AND ACCOUNTIING: CLAIMS: - CONTRACTOR agrees to pay all claims, taxes and fees for equipment, labour, materials, services and supplies to be furnished by it hereunder and agrees to allow no lien or charge resulting from such claims to be fixed upon any property of CORPORATION. CORPORATION may, at its option, pay and discharge any liens or overdue charges for Contractor’s equipment, labour, materials, services and supplies under this CONTRACT and may thereupon deduct the amount or amounts so paid from any sum due or thereafter become due, to CONTRACTOR hereunder. 8.1 NOTICE OF CLAIMS: - CONTRACTOR or CORPORATION, as the case may be, shall promptly give the other, notice in writing of any claim made or proceeding commenced for which that party is
  • 70.
    69 | Pa g e entitled to indemnification under the CONTRACT. Each party shall confer with the other concerning the defense of any such claims or proceeding, shall permit the other to be represented by counsel in defense thereof, and shall not effect settlement of or compromise any such claim or proceeding without the other’s written consent. TAXES: - CONTRACTOR, unless specified otherwise in the CONTRACT, shall bear all tax liabilities including service tax, duties, Govt. levies etc. including customs duty, Corporate and personnel taxes levied or imposed on the CONTRACTOR on account of payments received by it from the CORPORATION for the work done under this CONTRACT. It shall be the responsibility of the CONTRACTOR to submit to the concerned Indian authorities, the returns and all other concerned documents required for this purpose and to comply in all respects with the requirements of the laws in this regard, in time. PERSONNEL TAXES: - The CONTRACTOR shall bear all personnel taxes levied or imposed on its personnel, Sub-Contractor’s personnel, vendors, consultants etc. on account of payment received under this CONTRACT. CORPORATE TAXES: - The CONTRACTOR shall bear all Corporate taxes, levied or imposed on the CONTRACTOR on account of payments received by it from the CORPORATION for the work done under this CONTRACT. If it is so required by the applicable laws in force at the time of payment, the CORPORATION shall withhold from the amount due to the CONTRACTOR and pay to the Indian Tax authorities any tax levied or assessed on account of the Contractor’s operations pursuant to this CONTRACT. It is noted that CONTRACT u/s 195(2) of the Income Tax Act, 1961 for the purpose of deduction of tax at source will be obtained by ONGC from the Dy. Commissioner of Income Tax (Asst.), Navi Mumbai / Mumbai or special range-I, Dehradun.
  • 71.
    70 | Pa g e It is noted that CONTRACT u/s 195(2) of the Income Tax Act, 1961 for the purpose of deduction of tax at source will be obtained by ONGC from the Dy. Commissioner of Income Tax(Asst.), Special Range-I, Dehradun. In view of the Central Board of Direct Taxes(CBDT)’s notification no 9579 dated 5.8.94 the foreign CONTRACTOR is responsible for filing the returns of their income as well as their SUB-CONTRACTOR’s assignees including that of their partner in the Joint Venture CONTRACT’S (whether Indian or otherwise) and get their assessment completed with the Dy. Commissioner of Income Tax (Asst.), Special Range-I, Dehradun, India). For the lapse, if any on the part of the CONTRACTOR and consequential penal action taken by the Tax department, the CORPORATION shall not take any responsibility whether financial or otherwise. 9.0 PERFORMANCE:- The CONTRACTOR shall undertake to perform all services under this CONTRACT with all-reasonable skill, diligence and care in accordance with sound industry practice to the satisfaction of the CORPORATION and accept full responsibility for the satisfactory quality of such services as performed by them. Any defect, deficiencies noticed in the Contractor’s service will be promptly remedied by the CONTRACTOR within 10 days upon the receipt of written notice from the CORPORATION to improve their performance failing which the CORPORATION may terminate the CONTRACT by giving the CONTRACTOR 30 (thirty) days written notice. 10.0 PERFORMANCE BOND:- The CONTRACTOR shall furnish to the CORPORATION within 15 days from the date of fax CONTRACT/ Letter of Intent (LOI), security deposit in the form of a Bank draft or an irrevocable Bank Guarantee (as per the Proforma enclosed at Appendix-I of this Annexure II for the period specified in the bid document/ Notification of Award/ LOI, towards performance under this CONTRACT for the period of contract including Warranty/. Guarantee. In the event CONTRACTOR fails to honour any of the commitments entered into under this agreement, and /or in respect of any amount due from the CONTRACTOR to the CORPORATION, the CORPORATION shall have unconditional option under the guarantee to invoke the above bank guarantee and claim the amount from the bank. The bank shall be obliged to pay the amount to the CORPORATION on demand.
  • 72.
    71 | Pa g e 11.0 SECURITY DEPOSIT 11.1 A sum of 10% of the accepted annual contract value of the tender or actual value of the work order whichever is applicable is required to be deposited by the contractor as security deposit with the ONGC in the form Demand Draft drawn in favour of Dy Gen. Manager (F&A), ONGC, Uran Plant, Uran payable at Uran, or in the form of bank guarantee as per prescribed format. The validity of the said bank guarantee shall be for entire period of liability as per Clause 1.14 of this part. EMD submitted in the form of DD or Bank Guarantee shall be returned to the successful bidder after receipt of security deposit. 11.2 If the contractor / sub contractor or their employees shall break, deface or destroy the property belonging to the ONGC or other during the execution of the contract, the same shall be made good by the contractor at his own expenses and in default thereof, the engineer-in-charge may cause the same to be made good by other agencies and recover expenses from the contractor (for which the certificate of engineer-in-charge shall be final). 11.3 All compensation or other sums of money payable by the contractor to ONGC or recoveries to be made under terms of this contractor may be deducted from his security deposit or from any sums which may be due or may become due to the contractor on any account whatsoever. 11.4 No interest shall be payable by ONGC for the sum deposited as security deposit. 11.5 The security deposit shall be refunded after the expiry of the period of liability as stipulated in the contract and the work is over to the full satisfaction of Engineer-in- charge as per specifications. 12.0 FORFEITURE OF SECURITY DEPOSIT/ BANK GUARANTEE: - 12.1 The ONGC shall have an unqualified option to claim the amount including liquidated damages from the Security deposit or Performance Guarantee in the event of contractor failing to honour any of the commitments enter into under the Agreement and/or in respect of any amount due to the ONGC from the Contractor. In case, the ONGC is obliged to make any recoveries on any account under the contract from the security deposit of the contractor, the contractor shall be obliged
  • 73.
    72 | Pa g e to make good of the security deposit amount within a period of 10 days after the receipt of information in this regard, failing which the contractor has to pay 20% per annum interest for the period of delay in making the good of security deposit. 13.0 TIME PERIOD OF THE CONTRACT: - 13.1 This Contract shall remain valid for a period of six month from the date of placement of LOA / LOI 14.0 PERIOD OF LIABILITY: - 14.1 The period of liability shall mean the entire Contract Period including any extension thereof and the Warranty Period as mentioned in Guarantee Clause No. 1.14. 15.0 DISCIPLINE: - 15.1 CONTRACTOR shall carry out operations hereunder with due diligence and in a safe and workman like manner according to good international oilfield practice. CONTRACTOR shall maintain strict discipline and good CONTRACT among its employees and its SUB-Contractor’s employees and shall abide by and conform to all rules and regulations promulgated by the CORPORATION governing the operations. Should CORPORATION feel that the conduct of any of CONTRACTOR/SUB- Contractor’s employees is detrimental to Corporation’s interest, the CORPORATION shall have the unqualified right to request for the removal of such employee either for incompetence, unreliability, misbehavior, security reasons etc. while on or off the job. The CONTRACTOR shall comply with any such request to remove such personnel at Contractor’s expense unconditionally. The CONTRACTOR will be allowed a maximum of 2 working days to replace the person by competent qualified person at Contractor’s cost. 16.0 SAFETY AND LABOUR LAWS:- 16.1 CONTRACTOR shall comply with the provision of all laws including Labour Laws, rules, regulations and notifications issued there under from time to time. All safety and labour laws enforced by statutory agencies and by ONGC shall be applicable in the performance of this CONTRACT and CONTRACTOR shall abide by these laws.
  • 74.
    73 | Pa g e 16.2 CONTRACTOR shall take all measures necessary or proper to protect the personnel, work and facilities and shall observe all reasonable safety rules and instructions. No smoking shall be permitted out side the living quarters, and welding jobs will be carried out with full safety precautions. ONGC’s employee also shall comply with safety procedures/policy. 16.3 The CONTRACTOR shall report as soon as possible any evidence which may indicate or is likely to lead to an abnormal or dangerous situation and shall take all necessary emergency control steps to avoid such abnormal situations. 17.0 SECRECY: - 17.1 CONTRACTOR shall during the tenure of the CONTRACT and at anytime thereafter maintain in the strictest confidence all information relating to the work and shall not, unless so authorized in writing by corporation, divulge or grant access to any information about the work or its results and shall prevent anyone becoming acquainted with either through CONTRACTOR or its personnel or authorized SUB- Contractors or agents. CONTRACTOR shall not avail of the information obtained in the course of work hereunder in any manner, whatsoever, nor shall CONTRACTOR divulge any information about the location of the work area of part thereof. CONTRACTOR shall not also destroy any report, note and technical data relating to the operation/ work and not required by the CORPORATION. The obligation is continuing one and shall survive after the completion/ termination of this agreement. 18.0 STATUTORY REQUIREMENTS: - 18.1 During the tenure of this CONTRACT nothing shall be done by the CONTRACTOR in contravention of any law, act and/or rules/regulations, there under or any amendment thereof governing interallia customs stowaways, foreign exchange etc. 19.0 INSURANCE: - 19.1 The contractor shall at his own expenses carry and maintain insurance with reputable insurance companies to the satisfaction of ONGC as follows. The contractor shall make the insurance to cover all his workers for the entire contract period. Gate passes will be issued on submission of insurance coverage policy in favor of workers deployed by contractor. 19.2 Employees state insurance act:
  • 75.
    74 | Pa g e The contractor agrees to and does here by accept full and exclusive liability for the compliance with all obligations imposed by the employees state insurance act, 1948, and the contractor further agrees to defend, indemnify and hold the ONGC harmless from any liability or penalty which may be imposed by the central, state or local authority by the reason of any ascertained violation by the contractor or sub contractor of the employee state insurance act, 1948, and also from all claims, suits or proceedings that may be brought against the ONGC arising under growing out of or by reason of the work provided for this contract whether brought by employees of the contractor, by third parties or by Central or state government authority or any political sub division thereof. The contractor agrees to fill in with the employee state insurance corporation, the declaration forms and all forms which may be required in respect of the contractors or sub-contractors employees, who are employed in the work provided for or those covered by ESI from time to time under the agreement of the sub contractor to deduct the employee’s contribution as per the first schedule of the employees state insurance act from wages and affix the employees contribution cards at wages payments intervals. The contractor shall remit and secure the agreement of the sub- contractor to result to the state bank of India, employees state insurance corporation account, the employees contribution as required by the act. The contractor agrees to maintain all cards and records as required under the act in respect of employee and payments and such records. Any expenses incurred for the contributions, making contributions or maintaining records shall be to the contractors or sub-contractors account. The ONGC shall retain such sum as be necessary from the total contract value until the contractor shall furnish satisfactory proof that the contributions as reward by the employees state insurance act 1948, have been paid. 19.3 Workmen’s Compensation and Employers liability insurance: - Insurance shall be affected for all the contractors’ employees engaged in the performance of this contract. If any of this work is sublet, the contractor shall required the sub contractor to provide Workmen’s Compensation and Employers liability insurance for the later employees, if such employee are not covered under the contractors insurance. Any other insurance required under the law or regulation or by ONGC.
  • 76.
    75 | Pa g e Contractor shall also carry and maintain any and all other insurance, which he may be required under any law or regulation from time to time. 19.4 Accident or injury to workman: The ONGC shall not be liable for or in respect of any damage or compensation payable at law in respect or in consequence of any accident or injury to any workman or other person in the employment of the contractor or any sub contractor save and except an accident or injury resulting from any act or the default of the ONGC, his agents or servants and the contractor shall indemnify and keep indemnified the ONGC against all such damages and compensation (save except as aforesaid) and against all claims, demands, proceedings, costs, charges, and expenses what so ever in respect or in relation thereto. 19.5 Transit insurance: In respect of all items to be transported by the contractor to the site of work, the cost of transit insurance should be borne by the contractor and the quoted price shall be inclusive of this cost. 19.6 Third party liability insurance. The contractor shall take “third party” liability insurance with suitable coverage so as to indemnify the ONGC against all types of risks for the works being carried out by the other agencies at the site. 19.7 Damage To The Property The contract shall be responsible for asking good to the satisfaction of the Engineer- in-charge any loss or any damage to all structure and properties belonging to the corporation ltd or being executed or procured or being procured by the corporation Ltd or of other agencies within the premises of all the work of the ONGC. If such loss or damage is due to fault and / or willful acts or omission of the contractor, his employee, agents, representative or sub contractor. The contractor shall indemnify and keep the ONGC harmless of all claims for damages to property other than of the ONGC property arising under or by reason of this contract, if such claims result from the default and/ or negligence or willful acts
  • 77.
    76 | Pa g e or omissions of the contractor, his employee, agents, representative or sub contractor. The ONGC is not liable for payment of any damages or loss incurred by the contractor during execution of the work, including transportation and handling. A) Contractor shall, at his own expense, arrange appropriate insurance to cover all risks assumed by the CONTRACTOR under this CONTRACT in respect of its personnel deputed under this CONTRACT as well as Contractor’s equipment, tools and any other belongings of the CONTRACTOR or their personnel during the entire period of their engagement in connection with this CONTRACT. ONGC will have no liability on this account. However, CONTRACTOR shall not be required to take insurance cover for their equipment, tools when these are in the custody of ONGC. (Amended as per Circular No 18/2004 Dated 29-03-2004 from Chief (MM), Dehradun). B) Insurance by CONTRACTOR for Corporation’s existing property: - CONTRACTOR shall take out insurance policies against all risks of loss or damage caused to Corporation’s property comprising but not limited to all rotating / stationary equipments, pipe lines, storage tanks farms or any process handling equipments and tenders and other equipments for property owned or hired by CORPORATION and the works and part of the works taken over by CORPORATION however, caused by the CONTRACTOR or his authorized representatives, agent or sub-Contractors upto the deductible amount under the Corporation’s assured package policy in US$ per occurrence. Notwithstanding anything contained in any provision of this CONTRACT, save as specified above in this Clause CORPORATION shall defend, indemnify and hold harmless from and against any losses, damages, cost or claims relating to Corporation’s existing property except in case of gross negligence or willful misconduct of the Contractor, its sub-contractor their agents or employees, in which case the Contractor shall be liable to bear any loss or damage occurring to the Property of the CORPORATION as a result of its gross negligence or willful misconduct, provided however, that such liability shall be limited to 100% of the CONTRACT Price.
  • 78.
    77 | Pa g e “Gross Negligence” means: any act or failure to act (whether sole, joint or concurrent) by a person or entity which was intended to cause, or which was in reckless disregard of or wanton indifference to, avoidable and harmful consequences such person or entity knew, or should have known, would result from such act or failure to act. Notwithstanding the foregoing, Gross negligence shall not include any action taken in good faith for the safeguard of life or property, “willful misconduct” means: “intentional disregard of good and prudent standards of performance or proper conduct under the CONTRACT with knowledge that it is likely to result in any injury to any person or persons or loss or damage of property. C) Waiver of subrogation: All insurance policies of the CONTRACTOR with respect to the operations conducted hereunder as set forth in clause 13 hereof, shall be endorsed by the underwriter in accordance with the following policy wording:- “The insurers hereby waive their rights of subrogation against any individual, CORPORATION, affiliates or assignees for whom or with whom the assured may be operating to the extent of the Contractual indemnities undertaken by the CONTRACTOR”. D) Certificate of Insurance: Before commencing performance of the CONTRACT, CONTRACTOR shall upon request furnish CORPORATION with certificates of insurance indicating (1) kinds and amounts of insurance as required herein (2) insurance CORPORATION or companies carrying the aforesaid coverage (3) effective and expiry dates of policies (4) that CORPORATION shall be given thirty (30) days written advance notice of any material change in the policy (5) waiver of subrogation endorsement has been attached to all policies and (6) the territorial limits of all policies. If any of the above policy expire or/ are cancelled during the term of this CONTRACT and CONTRACTOR fails for any reason to renew such policies, then CORPORATION may replace it and charge the cost thereof to CONTRACTOR. Should there be lapse in any insurance required to be carried out by CONTRACTOR hereunder for any reason, losses resulting there from shall be to the sole account of the CONTRACTOR. Such insurance shall be affected within Insurance Company incorporated and registered in India or jointly with Company of International repute and an Insurance Company incorporated and registered in India.
  • 79.
    78 | Pa g e E) Deductible: - That portion of any loss not covered by insurance provided for in this article.. Solely by reason of deductible provision in such insurance policies shall be to the account of the CONTRACTOR. F) CONTRACTOR shall require all of its SUB-Contractors to provide such of the foregoing insurance cover as the CONTRACTOR is obligated to provide under this CONTRACT. 20.0 INDEMNITY AGREEMENT: 20.1 INDEMNITY BY CONTRACTOR: CONTRACTOR shall indemnify and keep indemnified CORPORATION, its contractors (other than the CONTRACTOR) and/or sub-contractors and its/their employees from all actions, proceedings suits, claims, demands, liabilities, damages, losses, costs, charges, expenses (including without limitation, wreck or debris, removal costs, where wreck or debris removal is ordered by a competent authority) judgments and fines arising out of or in the course of or caused by the execution of work under the CONTRACT or other obligations hereunder directly or indirectly associated herewith including but not limited to : a) Personal injury, illness or death of: i) Any of Contractor’s or subcontractor’s personnel (even if caused by or contributed to by the negligence or fault of Contractor); and ii) Subject to clause 21.1 (a) (I) any other person to the extent the injury, illness or death is caused by the negligence or fault of the Contractor or Contractor’s personnel or subcontractors or subcontractor’s personnel and b) Loss or damage to: i) Any property owned, hired or supplied by Contractor or Contractor’s personnel or subcontractors or subcontractor’s personnel including Constructional Plant (even if caused by, or contributed to by, the negligence or fault of CORPORATION); or ii) Subject to clause 21.1 (b) (I) any other property to the extent the loss or damage is caused by the negligence or fault of the Contractor or Contractor’s personnel or subcontractors or subcontractor’s personnel.
  • 80.
    79 | Pa g e INDEMNITY BY CORPORATION: CORPORATION shall indemnify and keep indemnified CONTRACTOR (which expression in this clause includes, unless the context otherwise requires. Subcontractors of any tier and their employees) from all actions, proceedings, suits, claims, demands, liabilities, damages, losses, costs, charges, expenses and fines arising from: a) Personal injury, illness or death of i) Any employee of the CORPORATION (even if caused by or contributed to by the negligence or fault of Contractor); ii) Subject to clause 20.1 (a) (I) any other person to the extent that the injury, illness or death is caused by the negligence or fault of CORPORATION; and b) Any loss or damage to: i) Any property owned, hired or supplied by CORPORATION (even if caused by or contributed to by the negligence or fault of Contractor); except to the extent that such property is in the care or custody of Contractor in connection with the work under the Contract. ii) Subject to clause 20.1 (b) (I) any loss or damage to any other property to the extent the loss or damage is caused by the negligence or fault of CORPORATION. 21.0 TERMINATION 21.1 Termination on expiry of the CONTRACT This Agreement shall be deemed to have been automatically terminated on the expiry of the CONTRACT period unless the ONGC has exercised its option to extend this CONTRACT in accordance with the provisions, if any, of this CONTRACT. 21.2 Termination on account of Force Majure
  • 81.
    80 | Pa g e Either party shall have the right to terminate this CONTRACT on account of Force Majeure, as set forth in Clause No. 27. 21.3 Termination on account of insolvency In the event the CONTRACTOR or its collaborator at any time during the term of this Agreement becomes insolvent or makes a voluntary assignment of its assets for the benefit of creditors or is adjudged bankrupt, then the ONGC shall, by a notice in Writing have the right to terminate this CONTRACT and all the Contractor’s rights and privileges hereunder, shall stand terminated forthwith. 21.4 Termination for unsatisfactory performance If the ONGC considers that the performance of the CONTRACTOR is unsatisfactory or, not upto the expected standard, the ONGC shall notify the CONTRACTOR in writing and specify in detail the cause of such dissatisfaction. The ONGC shall have the option to terminate this Agreement by giving 10 days notice in writing to the CONTRACTOR, if, CONTRACTOR fails to comply with the requisitions contained in the said written notice issued by the ONGC. 21.5 Termination for delay in mobilization Successful bidder shall be required to mobilize complete equipment along with crew (only crew in case of Operation and Maintenance Contracts) for commencement of services at the specified site within a maximum of 15 days from the date of Fax order / LOI / NOA. If the CONTRACTOR (successful bidder) fails to mobilize as above, the CONTRACT shall automatically stand terminated unless CORPORATION has extended the mobilization period with levy of Liquidated Damages, as per Clause 24.0 21.6 Termination at the sole discretion of ONGC: Notwithstanding anything herein, the ONGC may at its sole discretion terminate this contract by giving to the contractor thirty (30) days notice to that effect without assigning any reasons whatsoever. 21.7 CONSEQUENCES OF TERMINATION In all cases of termination herein set forth, the obligation of the ONGC to pay shall be
  • 82.
    81 | Pa g e limited to the period upto the date of termination. Notwithstanding the termination of this Agreement, the parties shall continue to be bound by the provisions of this Agreement that reasonably require some action or forbearance after such termination. In case of termination of CONTRACT herein set forth except under 22.1 and 22.2, the CONTRACTOR shall be put on holiday [i.e. neither any enquiry will be issued to the party by ONGC against any type of tender nor their offer will be considered by CORPORATION against any ongoing tender(s) where contract between CORPORATION and that particular CONTRACTOR (as a bidder) has not been finalized] for two years from the date of termination by CORPORATION to such CONTRACTOR. 22.0 SEVERABILITY: Should any provision of this agreement be found to be invalid, illegal or otherwise not enforceable by any court of law, such finding shall not affect the remaining provisions hereto and they shall remain binding on the parties hereto. 23.0 CONSEQUENTIAL DAMAGES: Notwithstanding either party’s fault, neither party shall be liable to the other party in respect of any consequential damages whatsoever. The term “Consequential damages” as used herein shall include without limitations to the meaning, loss of profit, production, business opportunities or use of assets. 24.0 LIQUIDATED DAMAGES: 24.1 If the Contractor fails to complete the work as provided in the Agreement within the period fixed/agreed in the work schedule, or at any time repudiates the contract, the ONGC without prejudice to any other right or remedy available, may at its discretion: a. Recover from the Contractor as ascertained and agreed liquidated damages, and not by way of penalty a sum calculated at the rate of 1/2% (half percent) per week or part thereof delay on the total value of the work delayed subject to a maximum of 10% of the total value of the work allotted. AND/ OR
  • 83.
    82 | Pa g e b. Arrange for the work and or part of the work in default by the contractor to be carried out by any other contractor/party by giving notice to the contractor on the account and at the sole risk and cost of the contractor. Such decisions of the ONGC will be final and binding on the contractor. The ONGC in such cases may terminate the contract. AND/ OR c. Terminate the contract and or a portion or part of the work thereof and if so desired arrange the work in default by the Contractor to be carried out by any other party at contractor’s sole risk and cost where action is taken under sub clause (b) and/ or sub clause (c) above, Contractor shall be liable for all losses which ONGC may sustain on this account, provided the said work or part of the work in default by the contractor is assigned to any other party at any time within one month from the date of such failure and in case of repudiation of the Contract before expiry of the aforesaid period of completion at any time within six months from the date of termination of the Contract. The Contractor shall not be entitled to any gain on such alternative arrangement and manner and method of making such alternative arrangement shall be at the discretion of the ONGC with a notice of 24 hours. 24.2 In the event of the ONGC, because of circumstances beyond its control, cannot provide the materials as agreed in the contract, the Contractor shall only be entitled for extension in time limit and such extension shall not entitles the Contractor for any compensation or payment of whatsoever nature. 24.3 In the event of ONGC because of circumstances beyond its control, cannot make available/provide the number of equipment for the execution of the work, it will not be binding on the ONGC, for the payment of any losses incurred or claimed whatsoever by the Contractor. 25.0 CHANGE IN LAW: In the event of any change or amendment of any Act or law, Rules or Regulations of Govt. of India or Public Body or any change in the interpretation or enforcement of any said Act or law, rules or regulations by Indian Govt. or public body which becomes effective after the date as advised by the ONGC for submission of final price bid for this CONTRACT and which results in increased cost of the works under the CONTRACT through increased liability of taxes, (other than personnel and
  • 84.
    83 | Pa g e Corporate taxes), duties, the CONTRACTOR shall be indemnified for any such increased cost by the ONGC subject to the production of documentary proof to the satisfaction of the ONGC to the extent which is attributable to such change or amendment as mentioned above. Similarly, if any change or amendment of any Act or Law including Indian Income Tax Act, Rules or regulations of any Govt. or public body or any change in the interpretation or enforcement of any said Act or Law, rules or regulations by Indian Govt. or public body becomes effective after the date as advised by the ONGC for submission of final price bid of this CONTRACT and which results in any decrease in the cost of the project through reduced liability of taxes, (other than personnel and Corporate taxes) duties, the CONTRACTOR shall pass on the benefits of such reduced cost, taxes or duties to the CORPORATION. Notwithstanding the above mentioned provisions, CORPORATION shall not bear any liability in respect of (I) Personnel taxes on the employees of CONTRACTOR and the employees of all its SUB-Contractors etc. (ii) Corporate taxes in respect of the CONTRACTOR and its SUB-Contractors etc. 26.0 LIABILITY OF THE GOVERNMENT OF INDIA: - It is expressly understood and agreed by and between the CONTRACTOR and ONGC (the Indian PSU) that ONGC is entering into this agreement solely on its own behalf and not on behalf of any other person or entity. In particular, it is expressly understood and agreed that the Govt. of India is not a party to this agreement and has no liabilities, obligations or rights hereunder. It is expressly understood and agreed that ONGC is an independent legal entity with power and authority to enter into Contracts solely in its behalf under the applicable laws of India and general principles of CONTRACT Law. The CONTRACTOR expressly agrees, acknowledges and understands that ONGC is not an agent, representative or delegate of the Govt. of India. It is further understood and agreed that the Govt. of India is not and shall not be liable for any acts, omissions, and commission, breaches or other wrongs arising out of the CONTRACT. Accordingly, CONTRACTOR hereby expressly waives, releases and forgoes any and all actions or claims, including cross claims, imp leader claims or counter claims against the Govt. of India arising out of this CONTRACT and covenants not to the Govt. of India as to any manner, claim, cause of action or thing whatsoever arising of under this CONTRACT
  • 85.
    84 | Pa g e 27.0 FORCE MAJEURE: In the event of either party being rendered unable by Force Majeure to perform any obligation required to be performed by them under the CONTRACT, the relative obligation of the party affected by such Force Majeure shall be suspended for the period during which such cause lasts. The term “Force Majeure" as employed herein shall mean acts of God, War, Civil Riots, Fire directly affecting the performance of the CONTRACT, Flood and Acts and Regulations of respective government of the two parties, namely ONGC and the CONTRACTOR. Upon the occurrence of such cause and upon its termination, the party alleging that it has been rendered unable as aforesaid thereby, shall notify the other party in writing, the beginning of the cause amounting to Force Majeure as also the ending of the said clause by giving notice to the other party within 72 hours of the ending of the cause respectively. If deliveries are suspended by Force Majeure conditions lasting for more than 2 (two) months, ONGC shall have the option of canceling this CONTRACT in whole or part at his discretion without any liability at his part. Time for performance of the relative obligation suspended by Force Majeure shall then stand extended by the period for which such cause lasts. 28.0 EMPLOYMENT BY FIRMS TO OFFICIALS OF ONGC Firms/companies who have or had business relations with ONGC are advised not to employ serving ONGC employees without prior permission. It is also advised not to employ ex-personnel of ONGC within the initial two years period after their retirement/resignation/severance from the service without specific permission of ONGC. The ONGC may decide not to deal with such firm(s) who fails to comply with the above advice. 29.0 PREFERENCE TO LOCAL COMPANIES:- CONTRACTOR agrees to give priority and preference to locally owned companies, when hiring Sub CONTRACTOR, SUBJECT TO price, quality and delivery being equivalent.
  • 86.
    85 | Pa g e 30.0 JURISDICTION AND APPLICABLE LAW:- This Agreement including all matter connected with this Agreement, shall be governed by the laws of India (both substantive and procedural) for the time being in force and shall be subject to exclusive jurisdiction of the Indian Courts (the place where the CONTRACT is signed in India). Foreign companies, operating in India or entering into Joint ventures in India, shall have to obey the law of the Land and there shall be no compromise or excuse for the ignorance of the Indian legal system in any way. All questions, disputes or differences arising under, out of or in connection with the agreement shall be subject to the exclusive jurisdiction of the Courts of Mumbai only. 31.0 ARBITRATION: 31.1 (Applicable for Indigenous contracts upto Rs. 1 Crores) Except as otherwise provided elsewhere in the CONTRACT if any dispute, difference, question or disagreement arises between the parties hereto or the respective representatives or assignees, at any time in connection with construction, meaning, operation, effect, interpretation or out of the CONTRACT or breach thereof the same shall be referred to Arbitration of Sole Arbitrator appointed by the Director of ONGC. It is also agreed that there will be no objection for appointment of an employee of ONGC as Sole Arbitrator who also holds shares of ONGC. Appointment of Arbitrator shall be made within 30 days of the receipt of the arbitration notice. If the Arbitrator so appointed dies, resigns, incapacitated or withdraws for any reason from the proceedings, it shall be lawful for the Director of ONGC to appoint another person in his place in the same manner as aforesaid. Such person shall proceed with the reference from the stage where his predecessor had left if both parties consent for the same; otherwise, he shall preceded novo.
  • 87.
    86 | Pa g e It is a term of the CONTRACT that the party invoking arbitration shall specify all disputes to be referred to arbitration at the time of invocation of arbitration and not thereafter. It is also a term of the CONTRACT that neither party to the CONTRACT shall be entitled for any ante-lite (pre-reference) or pendente-lite interest on the amount of the award. The Arbitrator shall give reasoned award and the same shall be final, conclusive and binding on the parties. The venue of the arbitration shall be the place from where the purchase order / CONTRACT has been placed / made. It is a term of the CONTRACT that the cost of the arbitration will be borne by the parties in equal shares. Subject to as aforesaid, the provisions of Arbitration and Conciliation Act 1996 and any statutory modifications or re-enactment in lieu thereof shall apply to the arbitration proceedings under this clause. 31.2 (Applicable in case of CONTRACT on Public Sector Enterprises) In the event of any dispute or difference relating to, arising from or connected with the CONTRACT, such dispute or difference shall be referred by either party to the arbitration of one of the Arbitrators in the Department of Public Enterprises, to be nominated by the Secretary to the Government of India, In-charge of the Bureau of Public Enterprises. The Arbitration and Conciliation Act 1996 shall not be applicable to the Arbitration under this clause. The award of the Arbitrator shall be binding upon the parties to the dispute, provided however; any party aggrieved by such award may make a further reference for setting aside or revision of the award to the Law Secretary, Deptt. of Legal Affairs, Ministry of Law and Justice, Government of India. Upon such reference, the dispute shall be decided by the Law Secretary or the Special Secretary / Additional Secretary, whose decision shall bind the parties finally and conclusively. The parties in the dispute will share equally the cost of the arbitration as intimated by the Arbitrator. 32.0 LABOUR LAWS ARBITRATION AND OTHER LEGAL MATTERS
  • 88.
    87 | Pa g e 32.1 Before deploying the persons inside the plant, you will furnish complete bio-data including qualifications, experience, their permanent and temporary address. 32.2 After the contract is awarded, the contractor should be required to produce license under Contractor Labour (Regulation & Abolition) Act, 1970, before commencement of work. Form-V required for obtaining the labour licence shall be issued along with the LOI. 32.3 Contractor should hire the workers in Maharashtra State only. If he recruits the workmen from outside the Maharashtra State for employment in Maharashtra, he should get the firm registered under Inter-State Migrant Workmen (Regulation of Employment & Conditions of Service) Act, 1979 and Central Rules, 1980. 33.0 OBSERVANCES OF LABOUR LAWS 33.1 The contractor shall observe and abide by all Labour Laws, Rules and Regulations prevailing in the country including Contract Labour (R&A) and Minimum Wages Act, etc. And shall keep ONGC harmless and indemnified against any action or for any violation or non-compliance of any Act, etc. SOME IMPORTANT LABOUR LAWS AND REGULATIONS 33.2 No labourers below the age of eighteen years shall be employed on the work. 34.0 PAYMENT OF WAGES TO LABOURERS 34.1 The contractor shall pay fair wages to his workmen but in no case be less than the wages prescribed by the appropriate Government under the Minimum Wages Act, 1948, for the scheduled industry as applicable to ONGC. In addition, he will provide statutory benefits such as PF, ESI, leave with wages and bonus to workmen, as per relevant Labour Laws as amended from time to time. ONGC shall not admit any claim whatsoever in regard to wages and other statutory benefits and the contractor shall solely be liable to pay the wages and other service conditions/statutory benefits, as prevalent from time to time, to his workmen. 34.2 The contractor shall comply with all laws/rules including but not limiting to Contractor Labour (R&A) Act, 1970, Minimum Wages Act, Payment of Wages Act,
  • 89.
    88 | Pa g e Workmen Compensation Act, Fire Safety Regulations, etc. And shall keep ONGC harmless and indemnified against any action brought against ONGC for any violation or non compliance of any Acts, Rules, etc., by him. 34.3 For those workmen who are not covered under ESI Act, the contractor shall take appropriate insurance policy and submit a copy of the same to ONGC. 34.4 The bills without documents towards proof of having deposited the contribution of PF and ESI with concerned authorities in respect of his workmen engaged on the job and proof of monthly payment to the workers, for the preceding month, shall not be entertained for payment and ONGC shall not be responsible for any delay on this account. 34.5 In respect of all labour directly or indirectly employed in the works for performance of contractor’s part of this agreement the contractor shall comply with or cause to be complied with Contractor’s Labour Regulations made by the ONGC from time to time in regard to payment of wages, wage period, deductions from wages, recovery of wages not paid and deductions unauthorized made, maintenance of wage books, wage slips publication of scale of wages and other terns of employment inspection and submission of periodical returns and all other matters of a like nature. Every worker shall be given a paid weekly holiday normally on Sunday in accordance with the provision of the Minimum Wages (Central) Rules, 1950, as amended from time to time irrespective of whether such worker is governed by the Minimum Wages Act, 1948, or not. 34.6 The engineer-in-charge shall have the right to deduct from the moneys due to the contractor any sum required or estimated to be required for making good the loss suffered by a worker or workers by reason of non-fulfillment of the conditions of the contract for the benefit of workers, nonpayment of wages or of deductions made from his or their wages which are not justified by their terms of the contract or non- observance of the regulation. 34.7 Under the provisions of Minimum Wages Act, 1948 and the Minimum Wages (Central) Rules, 1950 the contractor is bound to allow or causes to be allowed to the laborers directly or indirectly employed in the works one day rest for six days continuous work and pay wages at the same rates as for duty. In the event of default the engineer-in-charge shall have the right to deduct the sum or sums not paid on
  • 90.
    89 | Pa g e account of wages for weekly holiday to any labourers, and pay the same to the persons entitles thereto from any money due to the contractor. 34.8 Vis-à-vis the ONGC and the contractor shall be primarily liable to all payments to be made there under, and for the observance of the provisions aforesaid without prejudice to his right to claim indemnity to his sub-contractors. 34.9 The regulations aforesaid shall be deemed to be a part of this contract and any breach thereof shall be deemed to be beach of this contract. 34.10 In respect of all labour directly or indirectly employed in the work for the performance of the contractor’s part of this agreement the contractor shall at his own expenses arrange from time to time and shall at his own expenses provide for all the facilities in connection therewith. In case the contractor fails to make arrangement and provide necessary facilities as aforesaid he shall be liable to penalty of Rs. 50/- for each default and in addition the engineer-in-charge shall be at liberty to make arrangement and provide facilities as aforesaid and recover the costs incurred in that behalf from the contractor. 34.11 In the event of contractor (s) committing a default or breach of any of the provisions of the ONGC Contractor’s Labour Regulation and Model Rules for the protection of health and sanitary arrangements for his workers as amended from to time or furnishing information or submitting or filling any statement under the provisions of the regulations and rules which is materially incorrect, he/they shall without prejudice to any other liability pay to the ONGC a sum not exceeding Rs. 50/- for every default, breach or furnishing, making, submitting, filling such materially incorrect statements and in the event of the contractors defaulting, continuously in this respect, the penalty may be enhanced to Rs. 50/- per day for each day of default subject to a maximum of 5% of the estimated cost of the work awarded. The decision of engineer-in-charge shall be final and binding on the parties. 34.12 In respect of all workers employed directly or indirectly in the work for the performance of the contractor’s part of this agreement the contractor shall at his own expenses arrange for the medical fitness certificate for each employee from a registered medical practitioner, if any time asked by Engineer-in-Charge. 34.13 Section 97, III and 3(1) of the Factory Act, 1948 and the Workmen Compensation Act, 1923 respectively are to be followed strictly and being detailed as below:
  • 91.
    90 | Pa g e 34.14 Section 97 (Offence by worker) of the Factory Act says that: i) Subject to the provisions of section III, if any worker employed in a factory contravenes any provisions of this Act of any Rule or orders made there under, imposing any duty or liability on workers, he shall be punishable with fine which may extend to Rs. Five hundred. ii) Where a worker is convicted of an offence punishable under section (1) the occupier or manager of the factory shall not be deemed to be guilty of an offence in respect of that contravention, unless it is proved that he failed to take all reasonable measures for its prevention. 34.15 Section III (Obligation of Worker) i) No worker in a factory:  Shall willfully interfere with or misuse any appliance, convenience or other things provided in the factory for the purpose of securing the health, safety or welfare of the workers therein.  Shall willfully and without reasonable cause do anything likely to endanger himself or others.  Shall willfully neglect to make use of any appliance or other thing provided in the factory for the purpose of securing the health of safety of the workers therein. ii) If any worker employed in a factory contrivances any of the provision of section or of any rule or order made there under, he shall be punishable with imprisonment for a term which may extend to tree months, or with fine which may extend to Rs. 100/- (rupees one hundred only) or with both. 34.16 Section 3(1) in chapter II of the Workmen’s Compensation Act, 1923. If personal injury is caused to a workman by accident arising out of and in the course of his employment, his employer shall be liable to pay compensation in accordance with the provisions of this chapter. Provided that the employer shall not be so liable: i) in respect of any injury which does not result in the total or partial disablement of worker for a period exceeding three days.
  • 92.
    91 | Pa g e ii) In respect of (injury resulting in death, caused by) an accident which is directly attributed to:  the workman having been at time there of under influence of drink or drugs; OR  the willful disobedience of the workman to an order expressly given or to a rule expressly formed for the purpose of securing the safety of the workman; OR  the willful removal or disregard by the workman of any safety guard or other device which is known to have been provided for the purpose of securing the safety of workman. 34.17 The contractor should obtain the requisite licence for undertaking the job on contract from the respective labour authorities and produce a copy of the same to ONGC. 35.0 GOVT. DIRECTIVES ON EMPLOYMENT OF LABOUR The contractor shall follow the directives of Govt. of India regarding implementation of reservation in respect of SC/ST personnel in terms of employment for the job awarded. 36.0 CONTINUANCE OF THE CONTRACT: - Notwithstanding the fact that settlement of dispute(s) (if any) under arbitration may be pending, the parties hereto shall continue to be governed by and perform the work in accordance with the provisions under this CONTRACT. 37.0 INTERPRETATION: - The titles and headings of the sections in this CONTRACT are inserted for convenient reference only and shall not be construed and limiting or extending the meaning of any provisions of this CONTRACT. 38.0 ENTIRE AGREEMENT: - This Agreement supersedes all prior Agreements and commitments, whether oral or in writing between the parties concerning the subject matters thereof. The right of either party to require strict performances will not be affected by any previous waiver or course of dealing. Neither this Agreement nor any modification will be
  • 93.
    92 | Pa g e binding on a party unless signed by an authorized representative of CONTRACTOR and ONGC. 39.0 SITE POLLUTION RESPONSIBILITY In the performance of any and all services and the works hereunder by the contractor or his sub-contractors, the Contract shall accept full responsibility for compliance with all applicable laws and government orders, rules and regulations with as amended/ in force from time to time relating to pollution. Contractor and his sub-contractor(s) shall also comply with additional provisions as may be notified to the contractor by the Corporation without in any way limiting the generalist of the preceding sentences, it is specifically agreed that the Contractor shall comply with the following. i) Solid waste, such as tins, bottles, or any from of trash, must be transported to from the site to place decided by Corporation and the cost to be borne by Contractor. ii) Solid combustible waste must be transported from site to place decided by Corporation & the cost to be borne by Contractor. iii) The Contractor agrees to inform and his supervisors of such laws, orders and regulations and to make all his employees and the sub-contractor fully cognizant of their responsibilities there under. The Corporation’s Representative may discuss interpretations and applications of the laws, orders and regulations referred above with the Contractor’s Representative or site superintend but such discussions shall not in any way relieve the Contractor of his responsibility hereunder. In addition and without in any way limiting, restricting or prejudicing any of the Corporation’s other rights and remedies, whether arising under nay other provisions of this contract or under any rule of law, the contractor shall; i) Clean up and remove any pollution resulting from its non-compliance with the provisions of this Section, at his cost and expense, and ii) If the Contractor falls to do so, the Corporation may clean up and remove the pollution in such case the Contractor shall reimburse the Corporation upon receipt of bills from the Corporation for the cost of such clean up and removal. 40.0 LIMITATION OF LIABILITY, IN TURNKEY AND SERVICE CONTRACTS
  • 94.
    93 | Pa g e Not with standing any other provisions, except only in cases of willful misconduct and / or criminal acts, a) Neither the contractor nor the company (ONGC) shall be liable to the other, whether in contract, tort, or otherwise, for any consequential loss or damage, loss of use, loss of production, or loss of profits or interest costs, provided however that this exclusion shall not apply to any obligation of the contractor to pay liquidated damages to the company and b) Not with standing any other provisions incorporated elsewhere in the contract, the aggregate Liability of the contractor in respect of this contract, whether under the contract, in tort or otherwise, shall not exceed the total contract price, provided however that this limitation shall not apply to the cost of repairing or replacing defective equipment by the contractor, or to any obligation of the contractor to indemnify the company with respect to intellectual property rights. c) Company shall indemnify and keep indemnified contractor harmless from and against any and all claims, costs, losses and liabilities in excess of the aggregate liability amount in terms of clause (b) above. A. GENERAL OBLIGATIONS 1.0 CONTRACTOR’S OBLIGATIONS 1.1. All the tools & tackles required for the job shall be provided by the contractor. The contractor shall be solely responsible for safe custody of his tools and tackles.. 1.2. All the work men engaged by the contract agency should be physically fit, should have sound mind and should possess good conduct and discipline. 1.3. The work is to be carried out in “ RESTRICTED AREA and successful bidder will have to work as per instructions of Engineer-in-charge & should obtain permission in standard format for every employee working for him who are liable for physical check by competent authority as decided by Engineer-in-charge at any time. 1.4. After completing every maintenance activity, the contractor shall shift the unused spares / consumables to the designated areas under the supervision of Engineer-in- charge or his authorized representative.
  • 95.
    94 | Pa g e 1.5. Transport facilities for successful bidder personnel for carrying out the work at site is to be made and borne by the successful bidder at his cost. 1.6. Contractor shall provide boarding and lodging facility to his personnel for carrying out the subject job. ONGC will not be responsible for the same. 1.7. Contractor will have to provide cotton uniforms, safety shoes & other safety items like cotton hand gloves, helmets etc. to their persons at their own cost while at work in the Plant Premises. 1.8. Persons without kits and liveries mentioned above will not be allowed inside the plant. 1.9. Contractor has to arrange, for attending the all left over jobs or leakage etc if any. B WASTE MANAGEMENT & HOUSEKEEPING: a) Waste management during execution contract shall be the responsibility of the contractor. b) A suitable person shall be identified / designated by the contractor for all activities related to waste management in the contract. c) The contractor shall maintain proper housekeeping in the work area in order to ensure safety and good working environment. It should ensure that work area is kept clean at the end of work. d) Contractor’s equipments, tools & tackles should not cause hindrance in the escape route in case of emergency. e) Contractor while working in the plant area shall ensure that their activities do not contravene with the Environment Protection Act 1986. f) Contractor shall provide dust bins (as per colour coding) to ensure that all scraps, rubbish, oil rags, cotton waste, debris, etc. generated are kept secure. g) Waste materials to be segregated with respect to hazardous waste, used Batteries, Biomedical waste, Chemicals, E-waste and Municipal Solid Waste be kept in the appropriate containers kept at designated places in the plant.
  • 96.
    95 | Pa g e h) Contractor shall be ensure that they may follow all the waste management rules like Municipal Solid Wastes (Management and Handling) Rules 2000, Hazardous Wastes (Management, Handling and Tran boundary Movement) Rules 2008, E-waste Management and Handling Rules 2011, The Plastics (Manufacture, Usage and Waste Management) Rules 2009, The Batteries (Management and Handling) Rules, 2001, The Bio-Medical Waste (Management and Handling) Rules 1998 where ever applicable. i) Any violation observed in the above requirements, during execution, engineer-in charge shall make a deduction of Rs 500 for each occasion. 2.0 MATERIAL / FACILITIES PROVIDED BY ONGC 2.1 The transportation / shifting of material from stores (at Uran) or other areas within the plant premises shall be done by the contractor without any extra cost. 2.2 Air, electricity and water will be supplied by ONGC free of cost at one point. 2.3 Each equipment will be handed over to the contractor after taking all the safety precautions as per ONGC norms. 2.4 Specialized nature safety equipment if any will be provided by ONGC. The contractor shall be responsible for its safe use and shall return upon completion of job. 2.5 In case of accident, only first aid facility will be provided by ONGC at Uran Plant but contractor is also requested to make arrangement of FIRST AID facilities for his employees. Also, in case of accident transport facility to the nearest hospital may be provided by ONGC depending upon the availability. 2.6 Cranes, Trucks, etc. required for the job as decided by Engineer-in-charge, shall be arranged by the Contractor within plant premises at his / her own cost.
  • 97.
    96 | Pa g e SAFETY AND SECURITY CODE FOR ONGC The purpose of the safety code is to safeguard against the mishap and damage to the men, material and machinery while carrying out the work in ONGC area associated satellite stations. The contractor must adhere to the code to ensure complete safety. 1. No smoking shall be permitted. Carrying matches or lighters inside the ONGC area is strictly prohibited. These must be deposited at Main Gate with CISF. 2. Entry of automotive vehicles within plant premises is prohibited unless authorized by Fire & Safety Permit issued by competent authority. 3. No work in ONGC area to be carried out unless authorized by work permit issued by competent authority. 4. No hot works, which produce open flame, sparks or any ignition source etc. is carried out in the ONGC area unless such work is authorized by Fire & Safety Permit issued by competent authority. 5. It will be the responsibility of the contractor to see that specialized safety appliances supplied by the company are used with care. Any damage to such equipment will be recovered from the contractor. 6. Contractor must comply with ONGC’s procedure of ‘Injury reporting’. A report in this connection must reach in time to concerned authority of ONGC for further action. 7. Contractor’s worker shall not tamper or interfere with any machine or equipment in the operating area. He should use, adjust and repair equipment only when authorized. Never meddle with switches, controls, levers, valves, etc. 8. Strict compliance with all plant safety rules, cautionary sign and verbal safety instructions shall be observed. 9. Keep work place tidy, dispose off rubbish and waste in the containers provided. 10. Use right tools for the job to perform job safely.
  • 98.
    97 | Pa g e 11. Bringing in or being under the influence of intoxicant or narcotics inside the plant premises is prohibited. 12. Any situation likely to affect the safety of any employees or other co-workers must be promptly reported to the Engineer-in-charge. 13. Loitering inside the plant area is strictly prohibited. 14. Cover OWS, Stream, water, funnel points, manholes, vents, drains and valves in the vicinity with asbestos blankets. 15. All photo passes or tokens issued shall be surrendered to security section immediately after the expiry or termination of contract. Security deposit will be refunded only after submitting clearance from security section. Loss or replacement of the same shall invite penalty as per the prevailing rules of ONGC. 16. All existing and amended safety, fire and security rule of ONGC are to be followed within plant without fail. In addition to the above basic safety code, all contractor’s workers will have to undergo safety and fire induction training before employing them for actual work.. ONGC local safety department will make necessary arrangement to conduct such safety induction programme for contractor’s employees. Contractor must ensure that all his employees receive this training. 17. ISSUE OF PHOTO GATE PASSES: For entry to ONGC, Uran Plant, Uran photo passes will be issued by ONGC security department for which necessary formalities as required by security department are to be complied with. For Police verification certificate and all the charges will be born by the contractor. The successful contractor who has been awarded the job shall apply in the prescribed Proforma for issue of photo gate pass of their workers and site supervisors well in advance before actual start of work at ONGC, Uran.
  • 99.
    98 | Pa g e 18. RETURN OF PHOTO GATE PASSES: 18.1. All the photo gate passes issued to the contractor’s workers/site supervisors have to be surrendered essentially after completion of the work. Against the loss of any of the photo gate passes issued to the contractor shall invite penalty as mentioned below of as decided by ONGC from time to time: 18.2. Whenever any photo gate pass is lost, the contractor or the contractor’s employees concerned should lodge a police complaint immediately stating actual facts in the complaint. a) In case of first loss of photo gate pass, a penalty of Rs. 250/- (rupees two hundred fifty only) will be imposed for each lost/damaged pass and duplicate pass will be issued, if needed. b) In case of second loss of photo gate pass, a penalty of Rs. 500/- (rupees five hundred only) will be imposed and triplicate pass will be issued, if needed. c) In case of loss of photo gate pass third time, a penalty of Rs. 600/- (rupees six hundred only) will be imposed and contractor’s employee concerned will be black listed from ONGC and no further passes will be issued to the contractor for the concerned individual. d) If the contractor withdraw any of their employees deployed at the site of ONGC, Uran during the execution of the job, it is advised to surrender the photo gate pass immediately to In-charge CISF - Pass Section, ONGC Uran and submit the proof of cancellation of the said photo gate pass to In-charge Contract Cell. Any outstanding photo gate pass against the contractor will lead to non-clearance of their final bill after completion the work. 19. Certificate regarding verification of antecedents of contract employees: - The successful contractor shall produce a certificate from the Gram Panchayat or Block development Officer of the native place of each worker regarding verification of antecedents of persons. In lieu of this, the authorized signatory of the firm may also give an undertaking that the persons deployed by him bear good moral character. On production of such certificate photo passes to these persons will be issued as per procedure. However, police verification will be done by ONGC, CISF for the persons deployed at site and if any person is found having adverse remarks as per police verification report, his pass will be cancelled immediately. No claim from contractor whatsoever on this account shall be entertained by ONGC.
  • 100.
    99 | Pa g e 20. Contractor shall provide medical fitness certificate of employees from a registered medical practitioner, if required by Engineer-in-Charge. 21. ONGC reserves the right to ask the contractor to replace any person due to misbehavior or lack of knowledge. Replacement is to be provided immediately. 22. VERIFICATION OF CHARACTER AND ANTECEDENTS OF CONTRACTUAL MAN POWER In all contracts involving deployment of contractor’s man power within ONGC,s premises like plants, offices, installations, rigs, stock yards etc., the Contractor shall submit the following documents to ONGC prior to start work: (i) Undertaking from the Contractor that the character and antecedents of the person(s) proposed to be deployed by them is/are impeccable; (ii) Undertaking from the Contractor that they have scrutinized the previous working of the person(s) proposed to be deployed by them and there is nothing adverse as regards his/her character and antecedents. (ii) Along the above mentioned undertakings, the Contractor will provide certified photocopies of Police verification certificates for inspection by the authorized representative of ONGC. The contractor has to obtain Police verification report (Signed by an officer equivalent to an DSP rank or higher) from the area where the person (s) to be deployed has/have been residing since the last five years. In Case the person concerned has not resided at a place for five years at a stretch, Police verification reports should be obtained from the area where the person (s) has/have stayed earlier. Notification for Banned Category of Worker The contractor must not deploy following categories of employees, which have been prohibited by the Govt. of India, Ministry of Labour vide Govt. of India Notification No. U/23013/4/92-LW dated 08/09/1994:- Schedule (1) Fire Fighting (Fire Supervisor, Fireman, Fire Technician) (2) Typist (3) Clerics (Including accounts clerks)
  • 101.
    100 | Pa g e (4) Steno Typist and Stenographer (5) Data Operator (6) Computer operators (7) Store keepers (8) Boiler operators (9) Telephone operators (10) Attendants / Helpers / peons (11) Instrument Technical helper (12) Radio operators (13) Drivers (wherever driving works is not done by hiring vehicles on contract but by vehicles owned by the Oil and Natural Gas Commission) (14) Cleaner (15) Sweeper (16) Watchman The contractor shall abide to the above directives of notification and give an undertaking to this effect. As per Gazette of India, Ministry of labour Notification No. S.O.162(E), New Delhi dated- 26/02/2001 the following notification is passed against W.P.No.-5847/98. (17) “In exercise of powers conferred by sub-section(1) of section 10 of the contract labour ( Regulation & Abolition ) Act,1970 (37 of 1970 ), the central government, after consultation with the central advisory contract labour board hereby prohibits with effect from the date of publication of this notification the employment of helper engaged for executing the work of repairing pipes & replacing pipe lines in the establishment of Oil & Natural Gas Corporation Limited at their plant, Uran ( Maharashtra )” The bidder hereby undertakes that he (they) shall abide to the above directives of Notification as above. (Signature of Bidder with Seal)
  • 102.
    101 | Pa g e PROFORMA FOR ISSUE / RENEWAL OF NEW PASSES (Contractor’s Letter head is to be used for submission of this form.) Sl.No. Subject Particulars. 01. Name of Contractor 02. Name of the Job 03. Period of Insurance No. of Persons 04. Period for which pass is to be issued. Particulars of individual’s for whom the pass is required to be issued Sl.No. Name of Persons Pass Number Police Verification No. 01 02 03 04 05 06 07 Undertaking of the Contractor:
  • 103.
    102 | Pa g e This is to certify that the above-mentioned personnel are having good character, well known to me and I take full responsibility of their conduct and character inside the plant premises. Contractor’s signature and Stamp OIL AND NATURAL GAS CORPORATION LIMITED CARD ISSUE CENTRE, SECURITY DEPARTMENT DRONAGIRI BHAVAN,URAN PLANT URAN-400702 TE:27234753/27234750 CONTRACT INFORMATION 01. Work order/ Contract No. & date : (Enclose copy of work order) 02. Location of work : 03. Period of contract (Day, Month & Year) : 04. Extension granted, if any : From:________ To: ________ (Enclose copy of extension of order) 05. Total number of Smart Cards to be : Issued for executing the contract. 06. Name and Designation of Head of : the Company and Mobile No. : 07. Name & Full address of the Company : with company office Telephone No. 08. Name & designation of authorized : representative of company with Tel. No. : ------ & Mobile No.----- : 09. Name & designation of the Project- : In-Charge of ONGC to whom the Contractor is answerable.Tel No. : ------------------------------------------------- ---------------------------------------------------
  • 104.
    103 | Pa g e Signature of authorized Representative of Company Signature of Project In-Charge of ONGC Attested by me Attested by me Signature of Head of Company Contract (with office seal) Signature of Head of Executing Department of ONGC (with office Seal)
  • 105.
    104 | Pa g e Application Form For Non-Employee Duty Pass To be filled in by the individual and submitted to the In-Charge Security, Uran Plant through Concerned Section / Department / Principal Employer. (Application should accompany Approval of ONGC’s contract executing department, proof of Date of birth, current Police clearance certificate and one latest passport size color photographs affixed in the application). FIRST MIDDLE SURNAME 1. Name : (In Block Letters) 2. Father’s Name : 3. Date of Birth ( DD:MM:YYYY) : 4. Place of Birth : 5. Nationality : 6. Qualification : 7. Blood Group : 8. Designation : 9. Contractor’s Name : 10. Contract No. and Date : 11. a) Police Verification :(i) Date:__________(ii) Issued by : __________________ b) MHA (for expatriates only) (i) Date of application ___________________ 12. Residential Address :- : No Details Present Address Permanent Address a)Flat/Room N b)BuildingName /No c)Street No./ Na d)Location/Area/Village PPPAAASSSTTTEEE YYYOOOUUURRR PPPHHHOOOTTTOOO HHHEEERRREEE
  • 106.
    105 | Pa g e e)Police Station f)City g)District h)State i)Pin Code j)Tel No.: 13. Name & Tel no. of next of Kin : 14. Visible Identification Marks : 15. Passport Details a) Passport No. : b) Issued by : c) Valid Upto : 16. Type of Visa : ___________________Valid up to ____________ (Only Business & Employee Visas are allowed) 17. Safety Briefing given on : (with official seal & Signature) 18. Work Location:_______________________________________________ 19. DECLARATION: I hereby declare that the particulars given above are correct to the best of my knowledge and belief. I further declare that the pass issued by ONGC will be surrendered to the Pass Section through the principal contractor immediately on completion of its validity period /completion of contract, whichever is earlier. In case of loss of pass, I will immediately report the matter to the police and produce the copy of FIR in original to security section, ONGC. __________________________ __________________________ Countersigned by the contractor Signature of contract workman (office seal with name & designation) 20. DECLARATION: Attached supporting documents have been scrutinized. He has undergone the mandatory safety briefing, for issue of NED Pass. The photocopies of all documents are attested by company representative and they were compared with original by me. After comparison, the original certificates have been returned
  • 107.
    106 | Pa g e and attested copies of ID proof and original police clearance certificate are attached for issuance of the pass. Date: __________ Project In Charge of ONGC (With office seal) OFFICE USE Pass No: ________________ Issue Date: ____________ valid up to: _________________ Signature of I/C, CIC
  • 108.
    107 | Pa g e CERTIFICATE FROM PROJECT IN-CHARGE OF ONGC 1. Certified that all the above persons, _________________ (in numbers) have undergone all the mandatory Plant’s safety briefings. 2. The NED Pass applications along with supporting documents have been verified and certified for issue of NED Passes. 3. Deployment of above personnel is necessary for execution and operation of the contract. 4. I undertake to ensure surrender of passes immediately after the work/expiry of contract/pass validity, whichever is earlier. 5. I further undertake to ensure that the Final Bill of contractor will not be released till such time that all passes are surrendered to the Pass Section by the Contractor and an NOC is received from Pass Section. 6. One set of photo copies of supporting documents, duly attested, is attached along with the NED applications. Date: __________ Signature of Project In-charge of ONGC (with Office Seal ) OFFICE USE 1. Received the application along with required enclosures and found them in order / not found them (tick whichever is applicable) in order and returned to contractor along with reasons in writing on _______________ for rectification. 2. Pass Nos. from ________________ to _____________ issued to the company representative on ------------ Signature and Date of I/C CIC
  • 109.
    108 | Pa g e ANNEXURE – II APPENDIX - 1 PROFORMA OF BANK GUARANTEE TOWARDS PERFORMANCE SECURITY / PERFORMANCE GUARANTEE Ref. No. _________________________ Bank Guarantee No ___________ Dated: ______________ To DGM(P), I/C-Contract-Cell, Oil & Natural Gas CORPORATION, Mumbai Region, Uran Plant, Uran-400702, Dist:-Raigad, Maharashtra State, India. Dear Sirs, 1. In consideration of Oil & Natural Gas CORPORATION Limited, incorporated under the Companies Act, 1956, having its Registered Office at Jeevan Bharti, Tower-II, 124 Connaught Circus, New Delhi-110001, India and one of its offices at Mumbai Region, Uran Plant, Uran –400702, Dist.-Raigad, Maharashtra State (hereinafter referred to as `ONGC', which expression shall, unless repugnant to the context or meaning thereof, include all its successors, administrators, executors and assignees) having entered into a CONTRACT No. __________________ Dated _______________ (hereinafter called ‘the CONTRACT’ which expression shall include all the amendments thereto) with M/s __________________________ having its registered/head office at ______________________(hereinafter referred to as the 'CONTRACTOR') which expression shall, unless repugnant to the context or meaning thereof include all its successors, administrators, executors and assignees) and ONGC having agreed that the CONTRACTOR shall furnish to ONGC a performance guarantee for Indian Rupees .............. for the faithful performance of the entire CONTRACT. 2. We (name of the bank) ______________________________ registered under the laws of _______ having head/registered office at __________________________ (hereinafter referred to as "the Bank", which expression shall, unless repugnant to the context or meaning thereof, include all its successors, administrators, executors and permitted assignees) do hereby guarantee and undertake to pay immediately on first demand in writing any /all moneys to the extent of Indian Rs. (in figures)
  • 110.
    109 | Pa g e __________ (Indian Rupees (in words)_____________________________) without any demur, reservation, contest or protest and/or without any reference to the CONTRACTOR. Any such demand made by ONGC on the Bank by serving a written notice shall be conclusive and binding, without any proof, on the bank as regards the amount due and payable, notwithstanding any dispute(s) pending before any Court, Tribunal, Arbitrator or any other authority and/or any other matter or thing whatsoever, as liability under these presents being absolute and unequivocal. We agree that the guarantee herein contained shall be irrevocable and shall continue to be enforceable until it is discharged by ONGC in writing. This guarantee shall not be determined, discharged or affected by the liquidation, winding up, dissolution or insolvency of the CONTRACTOR and shall remain valid, binding and operative against the bank. 3. The Bank also agrees that ONGC at its option shall be entitled to enforce this Guarantee against the Bank as a principal debtor, in the first instance, without proceeding against the CONTRACTOR and notwithstanding any security or other guarantee that ONGC may have in relation to the Contractor’s liabilities. 4. The Bank further agrees that ONGC shall have the fullest liberty without our consent and without affecting in any manner our obligations hereunder to vary any of the terms and conditions of the said CONTRACT or to extend time of performance by the said CONTRACTOR(s) from time to time or to postpone for any time or from time to time exercise of any of the powers vested in ONGC against the said CONTRACTOR(s) and to forbear or enforce any of the terms and conditions relating to the said agreement and we shall not be relieved from our liability by reason of any such variation, or extension being granted to the said CONTRACTOR(s) or for any forbearance, act or omission on the part of ONGC or any indulgence by ONGC to the said CONTRACTOR(s) or any such matter or thing whatsoever which under the law relating to sureties would, but for this provision, have effect of so relieving us. 5. The Bank further agrees that the Guarantee herein contained shall remain in full force during the period that is taken for the performance of the CONTRACT and all dues of ONGC under or by virtue of this CONTRACT have been fully paid and its claim satisfied or discharged or till ONGC discharges this guarantee in writing, whichever is earlier. 6. This Guarantee shall not be discharged by any change in our constitution, in the constitution of ONGC or that of the CONTRACTOR.
  • 111.
    110 | Pa g e 7. The Bank confirms that this guarantee has been issued with observance of appropriate laws of the country of issue. 8. The Bank also agrees that this guarantee shall be governed and construed in accordance with Indian Laws and subject to the exclusive jurisdiction of Indian Courts of the place from where the purchase CONTRACT has been placed. 9. Notwithstanding anything contained herein above, our liability under this Guarantee is limited to Indian Rs. (in figures) ______________ (Indian Rupees (in words) ____________________) and our guarantee shall remain in force until ______________________.(indicate the date of expiry of bank guarantee) excluding the claim period of sixty (60) days. Any claim under this Guarantee must be received by us before the expiry of this Bank Guarantee. If no such claim has been received by us by the said date, the rights of ONGC under this Guarantee will cease. However, if such a claim has been received by us within the said date, all the rights of ONGC under this Guarantee shall be valid and shall not cease until we have satisfied that claim. In witness whereof, the Bank through its authorized officer has set its hand and stamp on this ........ day of ........200__ at ..................... WITNESS NO. 1 (Signature) (Signature) Full name and official address (in legible letters) with Bank Stamp Full name, designation and official address (in legible letters) with Bank stamp. WITNESS NO. 2 (Signature) (Signature) Full name and official address (in legible letters) Attorney as per Power of Attorney No........….…….. Dated ………… INSTRUCTIONS FOR FURNISHING PERFORMANCE GUARANTEE
  • 112.
    111 | Pa g e 1. The Bank Guarantee by Indian Bidders will be given on non-judicial stamp paper as per stamp duty applicable at the place from where the purchase CONTRACT has been placed. The non-judicial stamp paper should be in name of the issuing bank. 2. The expiry date as mentioned in Clause No. 9 should be arrived at by adding 60 days to the CONTRACT completion date unless otherwise specified in the bidding documents. 3. The Bank Guarantee by Indian bidders will be given from Nationalized/ Scheduled Banks only
  • 113.
    112 | Pa g e ANNEXURE III BID EVALUATION CRITERIA Vital criteria for acceptance of BIDS: Bidders are advised not to take any exception/ deviations to the bid document. If exceptions/ deviations are maintained in the bid, such conditional/ non- conforming bids shall not be considered and may be rejected out rightly. REJECTION CRITERIA: TECHNICAL REJECTION CRITERIA: The following vital technical conditions should be strictly complied with failing which the bid will be rejected: Bid should be complete and covering the entire scope of job and should conform to the technical specifications indicated in the bid documents, duly supported with authenticated signatory and technical catalogues / literatures wherever required. Incomplete and non-conforming bids will be rejected out rightly. Eligibility & Experience of the bidder: The bidder must have executed the job of fabrication of heat exchanger/re- tubing of exchanger in any Hydrocarbon industries/ Petrochemical / /Refineries /Fertilizers Plant/Power Plant/Industrial Unit/Public or Private Sector Organization Unit during last 7 years from the date of opening of the bid, should be either of the following:-
  • 114.
    113 | Pa g e (a) Three similar completed works each costing not less than the amount equal to Rs.29,32,504/- (Rupees Twenty Nine Lac Thirty Two Thousand Five Hundred Four Only) (b)Two similar completed works each costing not less than the amount equal to Rs. 36,65,630/- (Rupees Thirty Six Lac Sixty Five Thousand Six Hundred Thirty only) (c) One similar completed work costing not less than the amount equal to Rs. 58,65,008/- (Rupees Fifty Eight lac Sixty Five Thousand Eight Only) The bidder should submit notarized copies of respective contracts, along with documentary evidence in respect of satisfactory execution of contracts, in the form of copies of any of the following documents (indicating respective contract number and type of services), such as i). Satisfactory Completion/ Performance Report for execution of work (or) ii). Proof of Release of Performance Security after completion of the Contract (or) iii). Proof of Settlement/ Release of Final Payment Against The Contract (or) iv). Any other documentary evidence that can substantiate the satisfactory execution of each of contracts cited above. For the above, the work order should not be of dated prior to 7 years from the date of opening of bid. Bidders not qualifying the above mentioned eligibility qualifications and experience will be rejected. In case the bidder is an Indian Company / Indian Joint venture company, the Indian Company / Indian Joint Venture Company or its Technical Collaborator / Joint venture partner should meet the criteria laid down at B.1.2.1. Details of experience and past performance of the bidder and the collaborator ( In case of collaboration) or of joint venture partner ( In case of a joint venture), on works /jobs done of similar nature in the past and details of current work in hand and other contractual commitments , indicating areas and clients are to be submitted along with techno-commercial bid, in support of the experience laid
  • 115.
    114 | Pa g e B.1.2.5(b) Bidders should submit Memorandum Of Understanding (MOU) / Agreement with their technical collaborator /joint venture partner (in case of joint venture) clearly indicating their roles under the scope of work. B.1.2.5(c) MOU / Agreement concluded by the bidder with technical collaborator / joint venture partner (in case of joint venture), should also be addressed to ONGC, clearly stating that the MOU / Agreement is applicable to this tender and shall be binding on them for the contract period. Notwithstanding the MOU/Agreement, the responsibility of completion of job under this contract will be with the bidder. B.1.2.6 Offer of those bidders who themselves do not meet the experience criteria as stipulated in the BEC can also be considered provided the bidder is a 100% subsidiary company of the parent company which itself meets the experience criteria as stipulated in the BEC. In that case as the subsidiary company is down at Para B.1.2.1 In case the bidder is a consortium of companies, the following requirements should be satisfied by the bidder: a. a) The leader of the consortium should satisfy the minimum experience requirement as per Para B.1.2.1 above. b. b) The leader of the consortium should confirm unconditional acceptance of full responsibility of executing the ‘scope of work’ of this tender. This confirmation should be submitted along with the techno-commercial bid. c) All the members of the consortium must undertake in their MOU that each party shall be jointly and severally liable to ONGC for any and all obligations and responsibilities arising out of this contract. B.1.2.5(a) Indian Companies / Joint Venture Companies:- Indian bidders whose proposal for technical collaboration / joint venture involves foreign equity participation or payment of royalty and or lump-sum for technical know-how and wherever Govt. approval is necessary, are required to submit copy of Govt. approval, on their application submitted to SIA, prior to the date of price bid opening.
  • 116.
    115 | Pa g e dependent upon the experience of the parent company with a view ensure commitment and involvement of the parent company for successful execution of the contract, the participating bidder should enclose an agreement (Appendix-12A) between the parent and the subsidiary company and corporate guarantee (Appendix- 12B) from the parent company to ONGC for fulfilling the obligation under the agreement (copy of appendix 12 A & B are enclosed in Annexure-I of tender document). B.1.3 Bidder should confirm to complete the job as per schedule and entire scope of work, within 6 months from the date of letter/notification of award of work. B.2 COMMERCIAL REJECTION CRITERIA: The following vital commercial conditions should be strictly complied with, failing which, the bid will be rejected. B.2.1 Proof of the sale/issue of bid document: The forwarding letter, in original, as a proof of issue of the tender document, duly signed by tender issuing officer, must be sent by the bidder along with the offer. B.2.2 Bid should be submitted in Two-Bid system in two separate envelopes super- scribed as follows: a. Envelope no. 1: Techno-Commercial bid Tender No: ------------------Due on: ------------------ b. Envelope no. 2: Priced bid Tender No: ------------------ The Techno-Commercial bid shall contain all details but with the price column of the price bid format blanked out. However a tick mark (√) shall be provided against each item of the price bid format to indicate that there is a quote against this item in the Price bid. The Priced bid shall contain only the prices duly filled in as per the price bid format. Only the price format is to be submitted in the Priced Commercial bid. Both the offers shall be placed in one big single sealed cover duly super-scribed with name of work, tender no. , due date & time of opening of tender as well as the name & address of the Bidder.
  • 117.
    116 | Pa g e Offers with techno commercial bid containing prices shall be rejected out rightly. B.2.3 Notarized copy of Registration Certificate of the firm under any one of the following categories shall be submitted by the bidder along with Techno- Commercial bid: i. Indian Companies Act ’56. ii. Indian Partnership Act’32. iii. Shops and Establishment Act ’48 iv. Factories Act ’48 v. Directorate of Industries/NSIC Ltd. B.2.4 The bidder should submit notarized Copy of EPF allotment letter issued in the firm’s name by Regional Provident Fund Commissioner along with the Techno- commercial bid. The bidder should also submit the notarized copy of latest Challan for monthly remittances of EPF to Regional Provident Fund authorities. In case the bidder is not having EPF Code number at the time of submission of Bid, an undertaking (As per Annexure-I, Appendix-9 of tender document) should be furnished by the Bidder that he will obtain a EPF Code number from the Regional Provident Fund Commissioner and submit the notarized copy of EPF allotment letter and latest Challan for monthly remittances of EPF contributions to Regional Provident Fund authorities along with first Invoice submitted for payment against the work order. (Note: Conditions for applicability of above provisions Above clause w.r.t. submission of details on EPF payments shall not be applicable in following types of contracts: (a) In those Contracts wherein the services/jobs has been performed exclusively in the premises of the contractor. Certificate to the effect is to be submitted by the Contractor that services/jobs to be executed under the contract have been performed exclusively in his premises. OR (b) In those contracts also wherein contractor has employed only their full time regular employees for execution of the contract. Certificate to the effect is to be submitted by the contractor that for execution of the contract, no contractual labour has been employed and only full time regular employees of the contractor have been employed.
  • 118.
    117 | Pa g e OR (c) Fulfilment of conditions on EPF mentioned below: Information sought in above clause pertaining to only EPF shall not be required to be submitted in those contracts wherein the contractor has employed only those of his employees whose pay exceeds Rs. 6500/- per month. Certificate to the effect is to be submitted by the contractor that for execution of the contract, the monthly wages of all employees who have been employed, exceeds to Rs. 6500/-per month.) B.2.5 The bidder shall submit along with Techno-Commercial bid, Bid-bond/EMD for an amount of Rs.1,46,650/- (Rupees One Lac Forty Six Thousand Six Hundred Fifty Only) in the form of a Crossed Demand Draft/ Pay Order of any Indian Nationalized Bank/ Scheduled Commercial Bank valid for 90 days from the date of issue in the name of DGM (F&A), ONGC, Uran Plant, Uran payable at Mumbai / Navi Mumbai OR in the form of Bank Guarantee valid for 120 days from the date of opening of tender as per prescribed format. B.2.6 Earnest money / bid bond / bid security will not be necessary for tenders from Central Govt. / Central PSUs, OEMs / Authorised Distributers of OEMs. The firms registered with NSIC will be exempted from furnishing bid bond / bid security / earnest money against open and limited tender irrespective of monetary limit mentioned in their registration certificate provided they submit evidence that they have a valid registration during entire bid validity period for the item(s) they intend to quote. B.2.7 Bidders should submit a notarized copy of valid registration certificate under the VAT/ Sales Tax Rules. Further wherever the scope of supply involves rendering of any taxable service along with supply of goods / materials. B.2.8 The bidder should submit a notarized copy of a valid service tax registration certificate issued by concerned authorities of Tax department. In case the registration certificate for the requisite category(i.e. repair & maintenance) of service is not available at the time of submission of offer, an undertaking (As per Annexure-I, Appendix-9 of tender document) should be furnished for submission
  • 119.
    118 | Pa g e of copy of requisite service tax registration certificate along with first invoice submitted for payment against the purchase order. B.2.9 The bidder should confirm furnishing of Performance Bank Guarantee for 10% of the total contract value strictly as per the prescribed Performa enclosed in the tender document within two weeks of letter/fax of award/LOI as per the relevant clause of the tender document towards the execution of the contract, if awarded. B.2.10 The bidder has to give an undertaking ( As per Annexure-I, Appendix-9 of tender document ) that they will provide all the necessary certificates / documents for enabling ONGC to avail input VAT Credit and CENVAT credit benefits (wherever applicable), in respect of the payments of VAT, Excise Duty, Service Tax etc which are payable against the contract (if awarded) along with documentary evidence for payment of excise duty and service tax and the invoice should be made accordingly to enable ONGC to avail the benefits as per respective rules. B.2.11 The Bidder should submit a declaration ( As per Annexure-I, Appendix-9 of tender document ) to the effect that neither the bidder themselves, nor any of its allied concerns, partners or associates or directors or proprietors involved in any capacity, are currently serving any banning orders issued by ONGC debarring them from carrying on business dealings with ONGC B.2.12 PAYMENT CLAUSE: No advance payment and mobilization / demobilization charges at any stage and at any time will be made to the contractor. 100% payment will be made after successfully completion of the job as per scope of work. For payment of bill, contractor has to produce the bill/invoice in triplicate at our dispatch section, HR/ER Depts. And after obtaining tracking number the copy of the bill/invoice shall be forwarded to concerned Engineer in charge for certification and release of payment. Bill/invoice should be raised in the name of DGM (F&A), I/C-Finance, ONGC, Uran Plant,Uran. Payment shall be made within 21days from the date of receipt of the bill to Engineer in charge. The original invoices should also accompany the following documents /details:
  • 120.
    119 | Pa g e a. Particulars required for making payments through ‘Electronic Payment Mechanism’ in accordance with the payment clause. b. Invoice (i.e. Tax invoice as per relevant Service Tax rules, in original and duplicate, clearly indicating Service Tax registration number, Service Classification, Rate and amount of Service Tax shown Separately). c. Insurance policies and proof of payment of premium. (As applicable). d. Details of statutory payments like EPF etc. (As applicable). e. Undertaking by the contractor regarding compliance of all statutes. f. Certificate by the contractor stating that labour have been paid not less than minimum wages. (As Applicable). Any other document specifically mentioned in the contract, or supporting documents in respect of other claims (if any), permissible under the contract. C. CONTRACT PERIOD: The contract shall be valid for a period of 6 Months from the date of placement LOI / NOA. D. ACCEPTANCE OF TERMS & CONDITIONS: The Bidder must confirm in techno-commercial bid the acceptance of scope of work, General Conditions of contract, Special conditions of Contract, instructions to bidder, Schedule of rates, LD clause, Force Majeure clause, Termination clause, Security deposit clause, Arbitration clause, Jurisdiction clause, Insurance clause, Payment clause, Tax / duties/levies clause, warranty & guaranty clause and all other terms & conditions of the tender document in Toto. E. OFFERS OF FOLLOWING KINDS WILL BE REJECTED: E.1 Offers made without Bid Security/Bid Bond/Bank Guarantee along with the offer.
  • 121.
    120 | Pa g e E.2 Telex/ Telegraphic /Fax/ Email/ Xerox/ Photo copy bids and bids containing scanned signature E.3 Offers which do not confirm unconditional validity of the bid for 90 days from the date of opening of bid E.4 Offers where prices are not firm during the entire duration of the contract and/or with any qualifications. E.5 Offers which do not conform to the mobilization period indicated in the bid E.6 Offers which do not conform to ONGC’s price bid format E.7 Offers which do not conform to the contract completion period indicated in the bid F. TAX LIABILITY: F.1 Personnel Taxes: Bidder must agree to bear all personnel taxes within the quoted rates as may be imposed on his employees and the employees of his sub-contractors, vendors, back-up consultants, etc. on account of their association with or for performance of this work. F.2 F.3 Corporate Taxes: Bidder must agree to bear corporate taxes within the quoted rates which may be levied on the contractor, his consortium/Joint venture partner(s), sub- contractors, back-up consultants, cess, etc. for the performance of this work. VAT, Service Tax & Works Contract Tax: The rates quoted shall be inclusive of Maharashtra VAT, Service Tax & Works Contract Tax etc. ONGC is registered under the Central Sales Tax Act and is entitled to avail concessional rate of Central Sales tax against form `C’ in respect of inter-state purchases directly consigned to ONGC from the contractors in India provided the details of such cases are specifically mentioned in the bid and the contract.
  • 122.
    121 | Pa g e F.4 The Bidder shall have to clearly mention the Tax Break-up of individual items in their Tax Invoices, without which the Bills shall not be passed. F.5 Bidders taking exception to Tax Liability Clause shall be rejected G PRICE EVALUATION CRITERIA: G.1 Firm rates: Bidders should quote firm rates for the entire validity of their offer and extension(s) if any, and until the works are completed in all respects. No escalation whatsoever in prices shall be allowed during the tenure of the contract, including any extension thereof. Bids not offering firm prices shall be liable for rejection. G.2 Evaluation and Comparison of offers: The techno-commercially accepted offers will be evaluated on the basis of Total Lump Sum price quoted by the bidder as per Schedule of Rates i.e. inclusive of all duties, taxes, levies, cess, etc for deciding L-1 bidder. Total Lump Sum price (inclusive of taxes) shall be calculated as sum of “Unit rate x line item quantities” as stipulated in the schedule of rates of the tender document for commercial evaluation of the bid for deciding L-1 bid. G.3 Price bid must be in the Performa given in Schedule of Rates of the tender document and shall contain only prices. Any terms and conditions stipulated in the Price bid shall not be given any cognizance. G.4 Bidders are required to ascertain themselves, the prevailing rates of Service tax and all other taxes and duties as applicable (alongwith rates of all related levies viz. Surcharges, Cess, etc.,) on the scheduled date of submission of Price Bids/ revised Price Bids (if any) and ONGC would not undertake any responsibility whatsoever in this regard. Accordingly, bidders (excluding the Service providers covered under clause iv(1) below) should quote the prices, clearly indicating the applicable rate of Service Tax, description of service as per Service Tax rules (under which the respective service is covered) alongwith all other taxes and duties applicable. Details of abatements / deductions available, if any, should also be indicated specifically. Total price inclusive of all taxes and duties (including Service Tax) as applicable shall be taken for evaluation.In case the Services Tax and other taxes / duties is not quoted explicitly in the offer, the offer will be considered as inclusive of all liabilities of the same. In the contracts involving multiple services or involving supply of certain goods / materials alongwith the services, the Bidder should give separate
  • 123.
    122 | Pa g e break-up for cost of goods and cost of various services, and accordingly quote Service Tax as applicable for the taxable services. In case the Bidder does not give break-up of the quoted prices, separately indicating the components of taxable services and material to be supplied (if any), the Service Tax will be loaded on entire quoted / contract value for evaluation as per provisions of the statute Service Tax, if applicable, on input services required to meet the scope of work will be borne by the Bidder within their quoted prices. The bidder must avail eligible CENVAT/VAT credit of tax/ duty paid on input services /capital goods/ Inputs and benefit of CENVAT/VAT credit should be passed on to ONGC. by way of quot ing rate(s) net of CENVAT/VAT credit i.e. gross value of service adjusted by CENVAT/VAT credit available to the bidder. G.4.1 For Services received by ONGC, in taxable territory of India whereas per relevant provisions of tender document, the liability to pay 100% Service Tax is on ONGC, the Bidder should not include the Service Tax in his quoted price. However, the Service Tax as applicable will be loaded for evaluation on the portion of services which attract Service Tax.In case the Bidder does not give break-up of the quoted price, separately indicating the component for the taxable services and material to be supplied (if any), the Service Tax will be loaded on entire quoted / Contract value. G.4.2 For Services received by ONGC, where liability to pay Service Tax shall be discharged Partly by ONGC and partly by respective service provider as per clause No. 10.3.1 and 10.3.2 of Annexure-II of contract, bidder should include 100% Service Tax in their quoted prices. However, payment to the contractor shall be made after deducting portion of Service Tax to be Paid by ONGC directly to the tax authorities. G.5 Bidders are advised not to give separate discounts. Discounts if any should be merged in the rates against the quoted items. Discount of any type indicated separately will not be taken into account for evaluation purpose. However, in the event such offer without considering discount is found to be lowest, ONGC shall avail such discount at the time of placement of order. G.6 If Customs Duty/Excise Duty/Sales Tax/Service Tax are being taken into account for the purpose of evaluation of bids then the rate of Customs Duty/Excise Duty/Sales Tax Service Tax as prevailing on the date of bid closing/date of revised price bid closing as the case may be will be taken into consideration for the propose of evaluation of bids. However, if there is any change in the rate of Customs Duty / Excise Duty / Sales Tax / Service Tax after the date of bid closing/date of revised price
  • 124.
    123 | Pa g e bid closing but prior to award of the contract due to which there is any change in the original ranking of Bidders, then the Bidder who has emerged lowest based on the rate of Customs Duty/Excise Duty/Sales Tax Service Tax as prevailing on the date of bid closing/bid submission/opening of revised prices would be considered for award of contract but subject to matching his prices with the Bidder who has emerged lowest as a result of modification in duties & taxes. In case originally evaluated L-1 Bidder fails to match the price (with the Bidder who emerges L-1 due to change in Duties) then the award of contract will go to the Bidder who subsequently emerges L-1 due to change in Duties. H. GENERAL: H.1 The BEC over-rides all other similar clauses operating anywhere in the Bid Document. H.2 The bidder must quote for complete scope of work. The bidder in Techno-Commercial bid should confirm the same. Incomplete offer shall be liable for rejection. H.3 The bidder must quote the rates in schedule of rates format inclusive of all taxes, duties, levies, etc. The bidder in Techno-Commercial bid should confirm the same. H.4 The bidder is prohibited to offer any service / benefit of any manner to any employee of ONGC and the contractor may suffer summary termination of contract / disqualification in case of violation. H.5 No alteration/change in the Price bid by the bidders after the closing date will be taken into account for the evaluation unless specifically asked for by ONGC. H.6 Unsolicited clarification / letters from the bidders after opening of the Techno- Commercial bid will not be considered; rather it may lead to disqualification of the bid at the discretion of ONGC. H.7 ONGC reserves the right to reject or prefer any bid and to annul the bidding process and reject all bids at any time prior to award of contract, without thereby incurring any liability to the affected bidder or bidders or any obligation to inform the affected bidder or bidders of the ground for ONGC’s action. The ONGC also reserves to itself the right to accept any bid in part or spilt the order between two or more bidders. H.8 On site inspection will be carried out by ONGC’s officers / Third Parties representative at the discretion of the ONGC.
  • 125.
    124 | Pa g e H.9 All the documents submitted with the bid must be notarized. H.10 Bidders must submit the BEC Matrix duly filled in along with the Techno-Commercial bid H.11 Bidder shall comply with all the Waste Management and House-Keeping clauses mentioned in the tender document. BEC MATRIX Bidders should submit the ‘BEC Matrix” duly filled in, so as to re-confirm compliance with each of the requirements of BEC and other important conditions of the tender. Each such confirmation should be clearly stated in the “Bid Matrix’ indicating “confirmed” or “Not Confirmed”, as applicable. Further, against each such confirmation, bidders should also indicate the reference / location (page no. / Annexure, etc.) Of the respective detail(s) / document(s) enclosed in the bid, so as to easily locate the same in the bid document. Each entry in the “Bid Matrix’ must be filled-in in indelible ink (entries written in pencil will be ignored). Further, each page of the ‘Bid Matrix’ and the corrections / overwriting / erasures (if any) should be signed manually by the person (or, persons) signing the bid. Bidder are advised to ensure submission of ‘Bid Matrix’, duly filled-in as per above requirements, for avoiding rejection of their offers. BEC Clause Description Remarks A. Vital criteria for acceptance of BIDS: Bidders are advised not to take any exception/ deviations to the bid document. If exceptions/ deviations are maintained in the bid, such conditional/ non-conforming bids shall not be considered and may be rejected outright. Confirmed/ Not Confirmed B. REJECTION CRITERIA: B.1 TECHNICAL REJECTION CRITERIA:
  • 126.
    125 | Pa g e The following vital technical conditions should be strictly complied with failing which the bid will be rejected: B.1.1 Bid should be complete and covering the entire scope of job and should conform to the technical specifications indicated in the bid documents, duly supported with authenticated signatory and technical catalogues / literatures wherever required. Incomplete and non-conforming bids will be rejected outright. Confirmed/ Not Confirmed B.1.2 Eligibility & Experience of the bidder: B.1.2.1 The bidder must have executed the job of fabrication of heat exchanger/re-tubing of exchanger in any Hydrocarbon industries/ Petrochemical / /Refineries /Fertilizers Plant/Power Plant/Industrial Unit/Public or Private Sector Organization Unit during last 7 years from the date of opening of the bid, should be either of the following:- (a) Three similar completed works each costing not less than the amount equal to Rs. Rs.29,32,504/- (Rupees Twenty Nine Lac Thirty Two Thousand Five Hundred Four Only) OR (b) Two similar completed works each costing not less than the amount equal to Rs. 36,65,630/- (Rupees Thirty Six Lac Sixty Five Thousand Six Hundred Thirty only) OR (C) One similar completed work costing not less than the amount equal to Rs. 58,65,008/- (Rupees Fifty Eight lac Sixty Five Thousand Eight Only) The bidder should submit notarized copies of respective contracts, along with documentary evidence in respect of satisfactory execution of contracts, in the form of copies of any of the following documents (indicating respective contract number and type of services), such as i). Satisfactory Completion/ Performance Report for execution of work (or) ii). Proof of Release of Performance Security after completion of the Contract (or) Submitteded /Not Submitteded
  • 127.
    126 | Pa g e iii). Proof of Settlement/ Release of Final Payment Against The Contract (or) iv). Any other documentary evidence that can substantiate the satisfactory execution of each of contracts cited above. For the above, the work order should not be of dated prior to 7 years from the date of opening of bid. Bidders not qualifying the above mentioned eligibility qualifications and experience will be rejected. B.1.2.2 In case the bidder is an Indian Company / Indian Joint venture company, the Indian Company / Indian Joint Venture Company or its Technical Collaborator / Joint venture partner should meet the criteria laid down at B.1.2.1. Confirmed/ Not Confirmed B.1.2.3 Details of experience and past performance of the bidder and the collaborator (in case of collaboration) or of joint venture partner (in case of a joint venture), on works /jobs done of similar nature in the past and details of current work in hand and other contractual commitments, indicating areas and clients are to be submitted along with techno-commercial bid, in support of the experience laid down at Para B.1.2.1 Confirmed/ Not Confirmed B.1.2.4 In case the bidder is a consortium of companies, the following requirements should be satisfied by the bidder: a) The leader of the consortium should satisfy the minimum experience requirement as per Para B.1.2.21 above. b) The leader of the consortium should confirm unconditional acceptance of full responsibility of executing the ‘scope of work’ of this tender. This confirmation should be submitted along with the techno-commercial bid. c) All the members of the consortium must undertake in their MOU that each party shall be jointly and severally liable to ONGC for any and all obligations and responsibilities arising out of this contract. Confirmed/ Not Confirmed / Not Applicable B.1.2.5 (a) Indian Companies / Joint Venture Companies:- Indian bidders whose proposal for technical collaboration / joint venture involves foreign equity participation or payment of royalty and or lump-sum for technical know-how and wherever Govt. approval Confirmed/ Not Confirmed / Not
  • 128.
    127 | Pa g e is necessary, are required to submit copy of Govt. approval, on their application submitted to SIA, prior to the date of price bid opening. Applicable B.1.2.5 (b) Bidders should submit Memorandum Of Understanding (MOU) / Agreement with their technical collaborator /joint venture partner (in case of joint venture) clearly indicating their roles under the scope of work. Confirmed/ Not Confirmed / Not Applicable B.1.2.5 (c) MOU / Agreement concluded by the bidder with technical collaborator / joint venture partner (in case of joint venture), should also be addressed to ONGC, clearly stating that the MOU / Agreement is applicable to this tender and shall be binding on them for the contract period. Notwithstanding the MOU/Agreement, the responsibility of completion of job under this contract will be with the bidder. Confirmed/ Not Confirmed / Not Applicable B.1.2.6 Offer of those bidders who themselves do not meet the experience criteria as stipulated in the BEC can also be considered provided the bidder is a 100% subsidiary company of the parent company which itself meets the experience criteria as stipulated in the BEC. In that case as the subsidiary company is dependent upon the experience of the parent company with a view ensure commitment and involvement of the parent company for successful execution of the contract, the participating bidder should enclose an agreement (Appendix- 12A) between the parent and the subsidiary company and corporate guarantee (Appendix- 12B) from the parent company to ONGC for fulfilling the obligation under the agreement (copy of appendix 12 A & B are enclosed in Annexure-I of tender document). Confirmed/ Not Confirmed / Not Applicable B.1.3 Bidder should confirm to Complete the job as per schedule and entire scope of work within 6 months from the date of letter/notification of award of work. Confirmed/ Not Confirmed B.2 COMMERCIAL REJECTION CRITERIA: The following vital commercial conditions should be strictly complied with, failing which, the bid will be rejected. B.2.1 Proof of the sale/issue of bid document: The forwarding letter, in original, as a proof of issue of the tender document (purchased Confirmed/ Not
  • 129.
    128 | Pa g e against payment of requisite tender fee), duly signed by tender issuing officer, must be sent by the bidder along with the offer. Confirmed B.2.2 Bid should be submitted in Two-Bid system in two separate envelopes super-scribed as follows: a. Envelope no. 1: Techno-Commercial bid Tender No: _________ Due on: --------- b. Envelope no. 2: Priced bid Tender No: __________ The Techno-Commercial bid shall contain all details but with the price column of the price bid format blanked out. However tick mark (√) shall be provided against each item of the price bid format to indicate that there is a quote against this item in the Priced bid. The Priced bid shall contain only the prices duly filled in as per the price bid format. Only the price format is to be submitted in the Priced Commercial bid. Both the offers shall be placed in one big single sealed cover duly super-scribed with name of work, tender no. , due date & time of opening of tender as well as the name & address of the Bidder. Offers with techno commercial bid containing prices shall be rejected out rightly Confirmed/ Not Confirmed B.2.3 Notarized copy of Registration Certificate of the firm under any one of the following categories shall be submitted by the bidder along with Techno-Commercial bid: i. Indian Companies Act ’56. ii. Indian Partnership Act’32. iii. Shops and Establishment Act ’48 iv. Factories Act ’48 v. Directorate of Industries/NSIC Ltd. Submitted / Not Submitted B.2.4 The bidder should submit notarized Copy of EPF allotment letter issued in the firm’s name by Regional Provident Fund Commissioner along with the Techno-commercial bid. The bidder should also submit the notarized copy of latest Challan for monthly remittances of EPF to Regional Provident Fund authorities. In case the bidder is not having EPF Code number at the time of submission of Bid, an undertaking (As per Annexure-I, Appendix-9 of tender document) should be furnished by the Submitted / Not Submitted
  • 130.
    129 | Pa g e Bidder that he will obtain a EPF Code number from the Regional Provident Fund Commissioner and submit the notarized copy of EPF allotment letter and latest Challan for monthly remittances of EPF contributions to Regional Provident Fund authorities along with first Invoice submitted for payment against the work order. B.2.5 The bidder shall submit along with Techno-Commercial bid, Bid- bond/EMD for an amount of Rs.1,46,650/- (Rupees One Lac Forty Six Thousand Six Hundred Fifty Only) in the form of a Crossed Demand Draft/ Pay Order of any Indian Nationalized Bank/ Scheduled Commercial Bank valid for 90 days from the date of issue in the name of DGM (F&A), ONGC, Uran Plant, Uran payable at Mumbai / Navi Mumbai OR in the form of Bank Guarantee valid for 120 days from the date of opening of tender as per prescribed format. . D.D.No......... . Dtd…............ ...... for an amount of………......... ................iss ued by ………......….... . Payable at.…… …....... OR BGNo........... .... Dtd...........Va lid up to … …… … B.2.6 Earnest money / bid bond / bid security will not be necessary for tenders from Central Govt. / Central PSUs, OEMs / Authorised Distributers of OEMs. The firms registered with NSIC will be exempted from furnishing bid bond / bid security / earnest money against open and limited tender irrespective of monetary limit mentioned in their registration certificate provided they submit evidence that they have a valid registration during entire bid validity period for the item(s) they intend to quote Confirmed/ Not Confirmed B.2.7 Bidders should submit a notarized copy of valid registration certificate under the VAT/ Sales Tax Rules. Further wherever the scope of supply involves rendering of any taxable service along with supply of goods/ materials. Submitted / Not Submitted B.2.8 The bidder should submit a notarized copy of a valid service tax Submitted /
  • 131.
    130 | Pa g e registration certificate issued by concerned authorities of Tax department. In case the registration certificate for the requisite category (i.e. repair & maintenance) of service is not available at the time of submission of offer, an undertaking ( As per Annexure-I, Appendix-9 of tender document ) should be furnished for submission of copy of requisite service tax registration certificate along with first invoice submitted for payment against the purchase order. Not Submitted B.2.9 The bidder should confirm furnishing of Performance Bank Guarantee for 10% of the total contract value strictly as per the prescribed Performa enclosed in the tender document within two weeks of letter/fax of award/LOI as per the relevant clause of the tender document towards the execution of the contract, if awarded Confirmed/ Not Confirmed B.2.10 The bidder has to give an undertaking ( As per Annexure-I, Appendix-9 of tender document ) that they will provide all the necessary certificates / documents for enabling ONGC to avail input VAT Credit and CENVAT credit benefits (wherever applicable), in respect of the payments of VAT, Excise Duty, Service Tax etc which are payable against the contract (if awarded) along with documentary evidence for payment of excise duty and service tax and the invoice should be made accordingly to enable ONGC to avail the benefits as per respective rules. Confirmed/ Not Confirmed B.2.11 The Bidder should submit a declaration ( As per Annexure-I, Appendix-9 of tender document ) to the effect that neither the bidder themselves, nor any of its allied concerns, partners or associates or directors or proprietors involved in any capacity, are currently serving any banning orders issued by ONGC debarring them from carrying on business dealings with ONGC Confirmed / Not Confirmed 2.12 Payment clause: No advance payment and mobilization / demobilization charges at any stage and at any time will be made to the contractor. 100% payment will be made after successfully completion of the job as per scope of work. Confirmed/ Not Confirmed
  • 132.
    131 | Pa g e For payment of bill, contractor has to produce the bill/invoice in triplicate at our dispatch section, HR/ER Depts. And after obtaining tracking number the copy of the bill/invoice shall be forwarded to concerned Engineer in charge in charge for certification and release of payment. Bill/invoice should be raised in the name of DGM (F&A), I/C- Finance, ONGC, Uran Plant,Uran. Payment shall be made within 21days from the date of receipt of the bill to Engineer in charge. The original invoices should also accompany the following documents /details: a. Particulars required for making payments through ‘Electronic Payment Mechanism’ in accordance with the payment clause. b. Invoice (i.e. Tax invoice as per relevant Service Tax rules, in original and duplicate, clearly indicating Service Tax registration number, Service Classification, Rate and amount of Service Tax shown separately). C. Insurance policies and proof of payment of premium. (As applicable). d. Details of statutory payments like EPF etc. (As applicable). e. Undertaking by the contractor regarding compliance of all statutes. f. Certificate by the contractor stating that labour has been paid not less than minimum wages. (As Applicable). Any other document specifically mentioned in the contract, or supporting documents in respect of other claims (if any), permissible under the contract. C. CONTRACT PERIOD: The contract shall be valid for a period of 6 Months from the date of issue of LOI/NOA. Confirmed/ Not Confirmed D. ACCEPTANCE OF TERMS & CONDITIONS: The bidder must confirm in techno-commercial bid the acceptance of scope of work, general conditions of contract, special conditions of contract, instructions to bidder, schedule of rates, ld clause, force majeure clause, termination clause, Confirmed/ Not Confirmed
  • 133.
    132 | Pa g e security deposit clause, arbitration clause, jurisdiction clause, payment clause and all other terms & conditions of the tender document in Toto. E. OFFERS OF FOLLOWING KINDS WILL BE REJECTED: E.1 Offers made without Bid Security/Bid Bond/Bank Guarantee along with the offer. Confirmed/ Not Confirmed E.2 Telex/ Telegraphic /Fax/ Email/ Xerox/ Photo copy bids and bids containing scanned signature Confirmed/ Not Confirmed E.3 Offers which do not confirm unconditional validity of the bid for 90 days from the date of opening of bid Confirmed/ Not Confirmed E.4 Offers where prices are not firm during the entire duration of the contract and/or with any qualifications Confirmed/ Not Confirmed E.5 Offers which do not conform to the mobilization period indicated in the bid Confirmed/ Not Confirmed E.6 Offers which do not conform to ONGC’s price bid format Confirmed/ Not Confirmed E.7 Offers which do not conform to the contract completion period indicated in the bid Confirmed/ Not Confirmed F. TAX LIABILITY: F.1 Personnel Taxes: Bidder must agree to bear all personnel taxes within the quoted rates as may be imposed on his employees and the employees of his sub-contractors, vendors, back-up consultants, etc. on account of their association with or for performance of this work. Confirmed/ Not Confirmed F.2 Corporate Taxes: Bidder must agree to bear corporate taxes within the quoted rates which may be levied on the contractor, his consortium/Joint venture partner(s), sub-contractors, back-up consultants, cess, etc. for the performance of this work. Confirmed/ Not Confirmed F.3 VAT, Service Tax & Works Contract Tax: Confirmed/
  • 134.
    133 | Pa g e The rates quoted shall be inclusive of Maharashtra VAT, Service Tax & Works Contract Tax etc. ONGC is registered under the Central Sales Tax Act and is entitled to avail concessional rate of Central Sales tax against form `C’ in respect of inter-state purchases directly consigned to ONGC from the contractors in India provided the details of such cases are specifically mentioned in the bid and the contract. Not Confirmed F.4 The Bidder shall have to clearly mention the Tax Break-up of individual items in their Tax Invoices, without which the Bills shall not be passed. Confirmed/ Not Confirmed F.5 Bidders taking exception to Tax Liability Clause shall be rejected Confirmed/ Not Confirmed G. PRICE EVALUATION CRITERIA: G.1 Firm rates: Bidders should quote firm rates for the entire validity of their offer and extension(s) if any, and until the works are completed in all respects. No escalation whatsoever in prices shall be allowed during the tenure of the contract, including any extension thereof. Bids not offering firm prices shall be liable for rejection. Confirmed/ Not Confirmed G.2 Evaluation and Comparison of offers: The techno-commercially accepted offers will be evaluated on the basis of Total Lump Sum price quoted by the bidder as per Schedule of Rates i.e. inclusive of all duties, taxes, levies, cess, etc for deciding L-1 bidder. Total Lump Sum price (inclusive of taxes) shall be calculated as sum of “Unit rate x line item quantities” as stipulated in the schedule of rates of the tender document for commercial evaluation of the bid for deciding L-1 bid. Confirmed/ Not Confirmed G.3 Price bid must be as per the Performa given in Schedule of Rates of the tender document and shall contain only prices. Any terms and conditions stipulated in the Price bid shall not be given any cognizance. Confirmed/ Not Confirmed
  • 135.
    134 | Pa g e G.4 Bidders are required to ascertain themselves, the prevailing rates of Service tax and all other taxes and duties as applicable (alongwith rates of all related levies viz. Surcharges, Cess, etc.,) on the scheduled date of submission of Price Bids/ revised Price Bids (if any) and ONGC would not undertake any responsibility whatsoever in this regard. Accordingly, bidders (excluding the Service providers covered under clause iv(1) below) should quote the prices, clearly indicating the applicable rate of Service Tax, description of service as per Service Tax rules (under which the respective service is covered) alongwith all other taxes and duties applicable. Details of abatements / deductions available, if any, should also be indicated specifically. Total price inclusive of all taxes and duties (including Service Tax) as applicable shall be taken for evaluation.In case the Services Tax and other taxes / duties is not quoted explicitly in the offer, the offer will be considered as inclusive of all liabilities of the same. In the contracts involving multiple services or involving supply of certain goods / materials alongwith the services, the Bidder should give separate break-up for cost of goods and cost of various services, and accordingly quote Service Tax as applicable for the taxable services. In case the Bidder does not give break-up of the quoted prices, separately indicating the components of taxable services and material to be supplied (if any), the Service Tax will be loaded on entire quoted / contract value for evaluation as per provisions of the statute Service Tax, if applicable, on input services required to meet the scope of work will be borne by the Bidder within their quoted prices. The bidder must avail eligible CENVAT/VAT credit of tax/ duty paid on input services /capital goods/ Inputs and benefit of CENVAT/VAT credit should be passed on to ONGC. by way of quot ing rate(s) net of CENVAT/VAT credit i.e. gross value of service adjusted by CENVAT/VAT credit available to the bidder. G.4.1 For Services received by ONGC, in taxable territory of India whereas per relevant provisions of tender document, the Confirmed/ Not Confirmed
  • 136.
    135 | Pa g e liability to pay 100% Service Tax is on ONGC, the Bidder should not include the Service Tax in his quoted price. However, the Service Tax as applicable will be loaded for evaluation on the portion of services which attract Service Tax.In case the Bidder does not give break-up of the quoted price, separately indicating the component for the taxable services and material to be supplied (if any), the Service Tax will be loaded on entire quoted / Contract value. G.4.2 For Services received by ONGC, where liability to pay Service Tax shall be discharged Partly by ONGC and partly by respective service provider as per clause No. 10.3.1 and 10.3.2 of Annexure-II of contract, bidder should include 100% Service Tax in their quoted prices. However, payment to the contractor shall be made after deducting portion of Service Tax to be Paid by ONGC directly to the tax authorities. G.5 Bidders are advised not to give separate discounts. Discounts if any, should be merged in the rates against the quoted items. Discount of any type indicated separately will not be taken into account for evaluation purpose. However, in the event such offer without considering discount is found to be lowest, ONGC shall avail such discount at the time of placement of order. Confirmed/ Not Confirmed G.6 If Customs Duty/Excise Duty/Sales Tax/Service Tax are being taken into account for the purpose of evaluation of bids then the rate of Customs Duty/Excise Duty/Sales Tax Service Tax as prevailing on the date of bid closing/date of revised price bid closing as the case may be will be taken into consideration for the propose of evaluation of bids. However, if there is any change in the rate of Customs Duty/Excise Duty /Sales Tax / Service Tax after the date of bid closing/date of revised price bid closing but prior to award of the contract due to which there is any change in the original ranking of Bidders, then the Bidder who has emerged lowest based on the rate of Customs Duty/Excise Duty/Sales Tax Service Tax as prevailing on the date of bid closing/bid submission/opening of revised prices would be considered for award of contract but subject to matching his prices with the Bidder who has emerged lowest as a result of modification in duties & taxes. Confirmed/ Not Confirmed
  • 137.
    136 | Pa g e In case originally evaluated L-1 Bidder fails to match the price (with the Bidder who emerges L-1 due to change in Duties) then the award of contract will go to the Bidder who subsequently emerges L-1 due to change in Duties H. GENERAL: H.1 The BEC over-rides all other similar clauses operating anywhere in the Bid Document. Confirmed/ Not Confirmed H.2 The bidder must quote for complete scope of work. The bidder in Techno-Commercial bid should confirm the same. Incomplete offer shall be liable for rejection Confirmed/ Not Confirmed H.3 The bidder must quote the rates in schedule of rates format inclusive of all taxes, duties, levies, etc. The bidder in Techno- Commercial bid should confirm the same. Confirmed/ Not Confirmed H.4 The bidder is prohibited to offer any service / benefit of any manner to any employee of ONGC and the contractor may suffer summary termination of contract / disqualification in case of violation. Confirmed/ Not Confirmed H.5 No alteration/change in the Price bid by the bidders after the closing date will be taken into account for the evaluation unless specifically asked for by ONGC. Confirmed/ Not Confirmed H.6 Unsolicited clarification / letters from the bidders after opening of the Techno-Commercial bid will not be considered; rather it may lead to disqualification of the bid at the discretion of ONGC. Confirmed/ Not Confirmed H.7 ONGC reserves the right to reject or prefer any bid and to annul the bidding process and reject all bids at any time prior to award of contract, without thereby incurring any liability to the affected bidder or bidders or any obligation to inform the affected bidder or bidders of the ground for ONGC’s action. The ONGC also reserves to itself the right to accept any bid in part or spilt the order between two or more bidders. Confirmed/ Not Confirmed H.8 On site inspection will be carried out by ONGC’s officers / Third Parties representative at the discretion of the ONGC. Confirmed/ Not Confirmed H.9 All the documents submitted with the bid must be notarized. Confirmed/
  • 138.
    137 | Pa g e Not Confirmed H.10 Bidders must submit the BEC Matrix duly filled in along with the Techno-Commercial bid Confirmed/ Not Confirmed H.11 Bidder shall comply with all the Waste Management and House- Keeping clauses mentioned in the tender document. Confirmed/ Not Confirmed
  • 139.
    138 | Pa g e ANNEXURE IV Scope of Work ONGC Uran intends to carryout re-tubing of old Heat Exchangers bearing Tag No. E- 112, E-512 & E-2503 one number each as per the following scope of work. This scope covers the removal of exchangers, transportation of exchangers to it works, procurement of specified materials as per data sheet/drawings, assembling of tube bundle (using old tube sheet & baffles), hydro-testing at specified pressure, passivation, application of Titanium Putty on tube sheets, Painting, transportation to Uran Plant & installation of exchangers. The broad scope of work is given as under: General:- a. Exchangers to be collected from ONGC, Uran Plant with end covers. Bidder shall arrange crane of suitable capacity, manpower and tools & tackles for lifting and truck/trailer for transportation of the exchangers from ONGC, Plant to his works. b. Bidder shall remove the weld deposits from welded joints of shell and both the sheets & remove the existing tube bundles from the shells. Bidder shall take due care not to damage the shell, tube sheets & baffles in the process of weld deposit removal or removal of tube bundle. c. Bidder shall clean the internal of the shells mechanically to remove the deposit entirely and offer for inspection to TPIA/EIC representative. d. Repair of nozzles, saddles, other piping connections, supports partition plates & tube sheets gasket seat including any build up job to maintain the thickness of any component of exchangers, shall be carried by the bidder as per code. e. Bidder shall clean the (removed) tube sheet & baffle surfaces & tube holes to the metal finish and offer to TPI/EIC for inspection. f. Bidder shall procure new material for re-tubing including tubes, spacers, tie rods & all flange gaskets from reputed vendors. Bidder shall send the proof of the purchase along with mil test certificate to engineer-in-charge/TPI for review. g. Bidder shall carry out all fabrication related to re-tubing which includes old tube sheets, old baffles with new tubes, tie rods, spacers etc. as per data sheet. h. Insert tubes in to tube sheet; expand tube ends then air test if found leakage re- expand the tubes till the leakage is arrested; then seal weld tube ends; test welds; repair as needed. After completion of welding activities stress reliving shall be
  • 140.
    139 | Pa g e done by contractor. 15% of tube expansion & welding should be witnessed by TPIA. i. Hydro-testing of exchangers to Shell / Tube side to be done in presence of TPIA and ONGC Engineer-In-Charge. j. After Hydro-Test, Passivation has to be carried out as per the procedure given here under: 1. Isolate the exchangers and set up a circuit with an external tank with heating coil inside and a pump to circulate cleaning solution. FLUSHING: 2. Flush the exchangers with fresh water to remove loose material (like dirt etc.) till such time clear water comes. INHIBITED ACID CLEANING: 3. Circulate Inhibited Acid (5-6 % Citric Acid and 1% Rodine-213) along with non ionic wetting agent like TEEPOL through exchangers Loop for 6 to 8 hours. 4. It total iron concentration reaches 5000-8000 PPM and concentration below 2% acid percentage then dump the cleaning solution and repeat the cycle with fresh inhibited acid. 5. Samples to be tested for pH, TDS and iron on hourly basis. 6. Normal operating temperature should be 50-60 deg C. 7. When Iron concentration and acid concentration of solution reaches steady state and cleaning is completed. Drain the cleaning solution. NEUTRALIZING: 8. Circulate 1-2% solution of Soda Ash for one to two for neutralization. 9. Rinse the neutralizing solution with water till pH of Inlet and Outlet is same. PASSIVATION: 10. Immediately fill and Circulate with 1-3% of Sodium Hexametaphosphate for 4-6 hours keeping operating temperature around 50-60 deg. C. Analyze for Phosphate levels in Inlet and Outlet. (Normally maintain 30-40 PPM O-PO4 level). 11. Drain the passive solution without flushing with water. DRYING: 12. Dry the circuit with dry air. k. After Passivation successful bidder has to prepare surface of tube sheet & internal side of end covers and apply Titanium putty on tube sheet & brush able ceramic on inside of end covers.
  • 141.
    140 | Pa g e l. Shop painting: External surface of the shell and internal surfaces other than gasket faces and other machined surfaces shall be given one coat of primer paint followed by two coats of epoxy paint. The make of primer & epoxy paint shall be approved by ONGC. Surfaces to be painted shall be prepared for painting by removing loose mill scale, loose rust, oil, grease and other firms or substances harmful to the adhesion of paint by an approved method such as shot blast cleaning. m. After completion of above activities, the inside of exchangers shall be thoroughly drained & dried out by passing hot air for sufficient time. After drying, the exchangers shall be purged and filled with N2 at 0.25 Kg/ cm2 prior to transportation of exchangers to ONGC, Uran. n. Old retrieved Tubes and other internals (Spacer, tie rod etc.) of the exchangers shall be kept by the vendor at their works and cost consideration for the same to be given while quoting for the job. o. Dismantling, Transportation, erection & commissioning of the exchangers at site in Uran Plant after removing the existing in-service exchangers shall be under the scope of contractor. ONGC shall isolate the exchangers from service. Bidder shall get clearance from engineer in charge ONGC before taking up removal of in-service heat exchangers. Crane of suitable capacity, tools, tackles & manpower for removal of in-service exchangers and erection of re-tubed exchangers shall be arranged by the bidder. p. Bidder shall transport and place the removed in-service exchangers to the designated place as per the direction of Engineer-in-charge. q. Inspection of the job at various stages at the bidder’s workshop shall be done by TPI agency appointed by ONGC as per the quality plan approved by ONGC. r.After completion of job successful bidder has to provide following documents with the each re-tubed exchangers: i. Inspection report right from start to end with the endorsement from TPIA. ii. Hard & soft copy of approved drawings. iii. QAP iv. WPS Certificate v. Test certificate of filler wire vi. Material test certificate vii. Tube inspection certificate viii. Stress relieved report
  • 142.
    141 | Pa g e ix. Skeleton shell inspection report x. Calibration report of pressure gauge xi. Hydro test report I. Material:- 1.1 All the material required for re-tubing of Heat Exchangers shall be as per data sheet only. All bolting and gaskets, nozzles with blind covers (wherever specified); internal flanges (if any), internal bolting, cleats etc. shall also be in bidder’s scope of supply. Material as specified in the drawing / Technical Specification/ Data Sheet shall only be used for fabrication. Tube should be ASTM A 179 14 SWG (Wall thickness) seamless cold drawn tubes straight tubes with following specifications: A. Chemical composition: a) Carbon %: 0.06-0.18 b) Manganese: 0.27-0.63 c) Phosphorus Max.: 0.035 d) Sulphur Max.: 0.035 B. Hardness requirement: the tube shall have a hardness number not exceeding 72 HRB. Rockwell hardness test shall be made. C. Tensile Test: a) Tensile Strength Ksi [MPa]: 47 [325] b) Yield Strength ksi [MPa]: 26 [180] c) Elongation in 2” or 50 mm, min %: 35 In addition to manufacturer’s test certificate contractor has to carry out material testing from Govt. /EIL/ONGC approved labs and produce certificates, TPIA shall verify the same. All charges for material test shall be borne by contractor. 1.2 Any deviations or use of equivalent material shall have prior approval of ONGC. 1.3 Materials procured and used for fabrication shall be new and of first quality, supported with test certificates and shall meet all the requirement of ASTM, ASME Section VIII Div.1, TEMA Class-R and the drawings. 1.4 One product analysis of each heat shall be carried out as a supplementary requirement and reported. Chemical analysis shall be as per applicable specifications. 1.5 Thinning, machining & scaling allowances shall be added to minimum design thickness specified in attached drawings.
  • 143.
    142 | Pa g e 1.6 Gasket used for flange joints should be SS-304 spiral wound gasket with graphite filler SS inner ring & CS outer ring dimensions as per ASME B16.20-1998 (R2004). 1.7 All external bolts shall be stud bolts threaded to full length, each with two hexagonal nuts. Technical Part of Special Conditions of the Contract: 1. Payment terms: 100% payment shall be released after satisfactory completion of exchangers as per scope of work. 2. Completion Schedule: The complete re-tubing job as per scope of work of exchangers E-112, E-512 & E- 2503 shall be completed within 06 Months from the date of placement of LOA. 3. Inspection: Entire inspection activities for re-tubing shall be carried out by TPIA. TPIA shall be arranged by ONGC for a maximum period of 21 days for the exchangers. However, if additional days required, contractor shall pay for additional days. 4. Mobilization: Successful bidder has to mobilize & lift the exchanger within 15 days from the date of placement of LOI. 5. Guarantee / Warrantee: a) Re-Tubed exchanger shall be guaranteed for material & workmanship for duration of 12 months after being put in operation successfully at ONGC site, Uran. b) Bidder shall guarantee that all materials used in the equipment have been submitted to regular acceptance procedure and free from any defect regarding quality, form and appearance. c) Any defect during the guarantee/ warrantee period vendor should rectify the defect without delay and free of charge, if the vendor fails to attend / rectify the job. ONGC shall rectify the defect and cost towards the rectification shall be deducted from the vendor.
  • 144.
    143 | Pa g e SPECIFICATION DATA SHEET E - 112 Service of unit: Propane Refrigerant Condenser Project LPG Recovery Location URAN Size 1300 - 8500 Type AEM Horiz Surface Per unit 1132 m 2 Shell Per Unit 1 Performance of One Unit Shell Side Tube Side Fluid Circulated Hydrocarbon Cooling Water Total Fluid Entering kg/hr Operating Temperature o C IN 70 OUT 40 IN 33 OUT 37 Operating Pressure kg/cm 2 15.2 2.5 No. of Passes One Four CONSTRUCTION OF ONE SHELL Design pressure kg/cm 2 19 7.5 Test Pressure kg/cm 2 per code per code Design Temperature o C 90 T/SHT 75 No. of Tubes 2300; O. D. 19.05mm Thk: 2.11 mm (min); Length 8500 mm; Pitch: 23.81 Shell I.D. 1300 mm Thk: 18 long Baffle Yes/No Sealing Strips Yes/no Baffles 29 Nos Double SEMG Pitch: 268 % cut: dia: 1294.5 AREA: vert/Horizontal Imp. Plate: Yes/No Tie Rod: 06 Nos, ø12.7 Lg. 7785; Tie Rod: 10 Nos, ø 12.7, Lg. 8052 Spacer Tube: 10 Nos 482 Lg; 06 Nos 650 Lg; 280 Nos 260 Lg; 78 Nos 528 Lg all of ø19.05 2.11 Thk Materials Nozzles Shell Side Tube Side Shell SA516 Gr. 70 No. Dia Series & Type No. Dia Series & Type Channel Cover SA 266 Gr. 2 IN 1 10" 300# WNRF 1 16" 150# WNRF Shell Channel SA516 Gr. 70 OUT 1 8" 300# WNRF 1 16" 150# WNRF Baffles/Tube Support IS 2062 Gr. B Test Ring Yes/No Test Flange yes/No
  • 145.
    144 | Pa g e Tubes SA179 Weight (kg) Bundle Empty Full of Water Tie Rod IS 2062 Gr. B 27500 41000 Tube Sheet SA 266 Gr. 2 TEMA Class R Code ASME Section VIII Div -I
  • 146.
  • 147.
  • 148.
    147 | Pa g e SPECIFICATION DATA SHEET E - 512 Service of unit: Propane Refrigerant Condenser Project LPG Recovery Location URAN Size 1100 - 8000 Type AEM Horiz Connected in Parallel Surface Per unit 757 m 2 Surface per Unit 757 m 2 Shell Per Unit 1 Performance of One Unit Shell Side Tube Side Fluid Circulated Hydrocarbon Cooling Water Total Fluid Entering kg/hr Operating Temperature o C IN 69 OUT 45 IN 33 OUT 37 Operating Pressure kPa 1490.611 245.166 No. of Passes One Two CONSTRUCTION OF ONE SHELL Design pressure kg/cm 2 19 7.5 Test Pressure kg/cm 2 (g) 28.5 11.25 Design Temperature o C 90 T/SHT 65 No of tubes 1600; O.D. 19.05 mm 14 BWG (min); Length 8000 mm; Pitch 23.81 Tube Sheet LHS & RHS 2 no, 1256 Ø Thk: 60, Shell O.D. 1100 mm I.D; 16 thk long Baffle Yes/No Sealing Strips Yes/no, Tube Sheet: 1278 Ø X 60Thk Baffles: 30 Nos OD 1095.5 Thk: 6 Double SEMG % cut: AREA: vert/Horizontal Imp. Plate: Wide: 300 Lg: 255 Yes Tie Rod: 8 Nos Dia: 12, Lg: 7530, Tie Rod: 4 Nos Dia: 12, Lg: 7288 Spacer Tube: 56 Nos OD: 19.05 14BWG Lg: 478, 234 Nos OD: 19.05 14 BWG Lg: 236, 12 Nos OD: 19.05 14 BWG Lg: 438 Materials Nozzles Shell Side Tube Side
  • 149.
    148 | Pa g e Shell SA516M gr. 485 No. Dia Series & Type No. Dia Series & Type Impingement Baffle SA-36M IN 1 10" 300# WNRF 1 16" 150# WNRF Baffles SA-36M OUT 1 8" 300# WNRF 1 16" 150# WNRF Tie Rod SA-36M Spacer Tube SA 179M Channel RHS/LHS SA516M gr. 485 Test Ring Yes/No Test Flange yes/No Tube Sheet SA-226M Gr. 2 Weight (kg) Bundle Empty Full of Water Tubes SA179 20000 27000 TEMA Class R Code ASME Section VIII Div -I
  • 150.
  • 151.
  • 152.
    151 | Pa g e SPECIFICATION DATA SHEET E-2503 Service of unit Pre-Heater-LPG Column Condenser Project LPG Recovery Location URAN Size 9000-10272 Type AEL Horiz Connected in- Parallel Surface Per unit 586 m ² Surface per Unit 586 m ² Shell Per Unit One Performance of One Unit Shell Side Tube Side Fluid Circulated Hydrocarbon Cooling Water Total Fluid Entering kg/hr Operating Temperature o C IN 58.4 OUT 46.5 IN 33 OUT 43.0 Operating Pressure kg/cm2 9.0 4.0 No. of Passes one two CONSTRUCTION OF ONE SHELL Design pressure kg/cm2 14.0 7.5 Test Pressure kg/cm2 As per code As per code Design Temperature o C 180 65 No. of Tubes 1100 O.D ¾ in 14 BWG (min) Length 9000 mm Pitch 15/16” ∆ Tube Sheet LHS & RHS: 02 Nos, ø 1094, Thk 47 Shell I.D. 940 Thk 12 long Baffle Yes/No dia. 935.5 thk: 8 Sealing Strips Yes/No Baffles: 22 Nos; Double SEMG; Pitch 365 % cut dia 935.5 thk 8 mm AREA Vert / Horizontal Imp. Plate: yes / No Materials Nozzles Shell Side Tube Side Shell SA 516 Gr. 60 No. Dia Series & Type No. Dia Series & Type Impingement Baffle SA 516 Gr. 60 IN 1 12” 150# WNRF 1 10” 150# WNRF Baffles IS 2062 Gr. B OUT 1 8” 150# WNRF 1 10” 150# WNRF Tie Rod IS 2062 Gr. B MP Connection + bundle flange 4 11/2” 150# WNRF Spacer Tube SA 179 150# WNR Fent + blind flange 2 11/2” 150# WNRF Channel Shell LHS/RHS SA 516 Gr. 60 Drains + blind flange 2 11/2” 150# WNRF
  • 153.
    152 | Pa g e Tube Sheet SA 516 Gr. 60 Flange connection 1 2” 150# WNRF Tubes SA179 Test Ring Yes/No Test Flange yes/No Weight (kg) Bundle Empty Full of Water 2223015230 TEMA Class R Code ASME Section VIII Div -I
  • 154.
  • 155.
  • 156.
    155 | Pa g e ANNEXURE V Schedule of Rates “Re-tubing of heat exchangers E-112D, E-512B and E-2503 A/B of LPG 1, 2 & CFU Plant at Uran”. Amount to be quoted in INR Sr. No Description Unit Materials Part/Unit Service Part/Unit Total price/Unit (Materials +Service) A+B= C Qty D Total Amount CXD Basic Price A1 Tax, VAT, A2 Total Price A1+A2= A Basic Price B1 Service tax incl. Cess, etc B2 Total Price B1+B2= B 1 Re-Tubing of Heat – Exchanger E-112D as per scope of work. Nos 01 2 Re-Tubing of Heat – Exchanger E-512B as per scope of work. Nos 01 3 Re-Tubing of Heat – Exchanger E-2503A/B as per scope of work. Nos 01 Grand Total Lump Sum Price (1+2+3)(in figures) (In words)
  • 157.
    156 | Pa g e This page is left blank intentionall
  • 158.
    157 | Pa g e SCHEDULE OF RATES Sub: Job of “Re-tubing of heat exchangers E-112D, E-512B and E-2503 A/B of LPG 1, 2 & CFU Plant at Uran”. TAX BREAK-UP FORMAT RATES OF TAXES & DUTIES CONSIDERED AND INCLUDED IN THE ABOVE LUMP SUM PRICE ARE TO BE INDICATED FOR THE PURPOSE OF CLAIM IN ACCORDANCE WITH CHANGE IN LAW Laws, Acts, Rules, Regulations, etc. and the tariffs thereof considered by the bidder while estimating the incidence of taxes, duties, fees, levies, etc. considered and included in the bidder’s Lump sum price as per relevant provisions of general Conditions of Contract to be used for the purpose of adjustment to the contract price in the event of change in law. ITEM Tender document clause reference Laws /Act / Rules /Regulations etc. reference Tariff indicating rate of tax /duty /fee /levy, etc. Amount included in the Lump sum Price Excise Duty including Cess Sales Tax / VAT Service Tax including Cess Works Contract Tax Any other tax 1. ONGC is registered under the Central Sales Tax Act and is entitled to avail concessional rate of Central Sales tax against form `C' in respect of inter-state purchases directly consigned to ONGC from the contractors in India provided the details of such cases are specifically mentioned in the bid and the contract. 2. Bidder may suitably add other heads towards all the provisions and related information with regard to above. 3. The bidder not indicating the rates as desired above shall not be entitled for any claim due to change in law. 4. The bid will be evaluated on the basis of the total lump sum amount and not on separate individual work wise amount. (Signature & Seal of the Bidder)
  • 159.
    158 | Pa g e This page is left blank intentionally
  • 160.
    159 | Pa g e TENDER NO. UP14C13001 TENDER DOCUMENT (Price Bid) For the job of “Re-tubing of heat exchangers E-112D, E-512B and E-2503 A/B of LPG 1, 2 & CFU Plant at Uran”.
  • 161.
    160 | Pa g e This page is left blank intentionally
  • 162.
    161 | Pa g e ANNEXURE V Schedule of Rates “Re-tubing of heat exchangers E-112D, E-512B and E-2503 A/B of LPG 1, 2 & CFU Plant at Uran”. Amount to be quoted in INR Sr. No Description Unit Materials Part/Unit Service Part/Unit Total price/Unit (Materials +Service) A+B= C Qty D Total Amount CXD Basic Price A1 Tax, VAT, A2 Total Price A1+A2= A Basic Price B1 Service tax incl. Cess, etc B2 Total Price B1+B2= B 1 Re-Tubing of Heat – Exchanger E-112D as per scope of work. Nos 01 2 Re-Tubing of Heat – Exchanger E-512B as per scope of work. Nos 01 3 Re-Tubing of Heat – Exchanger E-2503A/B as per scope of work. Nos 01 Grand Total Lump Sum Price (1+2+3)(in figures) (In words) (Signature & Seal of the Bidder
  • 163.
    162 | Pa g e This page is left blank intentionally
  • 164.
    163 | Pa g e SCHEDULE OF RATES Sub: Job of Re-tubing of heat exchangers E-112D, E-512B and E-2503 A/B of LPG 1, 2 & CFU Plant at Uran”. TAX BREAK-UP FORMAT RATES OF TAXES & DUTIES CONSIDERED AND INCLUDED IN THE ABOVE LUMP SUM PRICE ARE TO BE INDICATED FOR THE PURPOSE OF CLAIM IN ACCORDANCE WITH CHANGE IN LAW Laws, Acts, Rules, Regulations, etc. and the tariffs thereof considered by the bidder while estimating the incidence of taxes, duties, fees, levies, etc. considered and included in the bidder’s Lump sum price as per relevant provisions of general Conditions of Contract to be used for the purpose of adjustment to the contract price in the event of change in law. ITEM Tender document clause reference Laws /Act / Rules /Regulations etc. reference Tariff indicating rate of tax /duty /fee /levy, etc. Amount included in the Lump sum Price Excise Duty including Cess Sales Tax / VAT Service Tax including Cess Works Contract Tax Any other tax 5. ONGC is registered under the Central Sales Tax Act and is entitled to avail concessional rate of Central Sales tax against form `C' in respect of inter-state purchases directly consigned to ONGC from the contractors in India provided the details of such cases are specifically mentioned in the bid and the contract. 6. Bidder may suitably add other heads towards all the provisions and related information with regard to above. 7. The bidder not indicating the rates as desired above shall not be entitled for any claim due to change in law. 8. The bid will be evaluated on the basis of the total lump sum amount and not on separate individual work wise amount. (Signature & Seal of the Bidder)
  • 165.
    164 | Pa g e This page is left blank intentionally