Embed presentation













































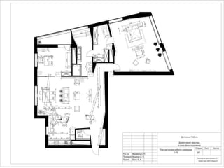
Документ представляет собой дизайн проект квартиры в стиле деконструктивизма, включающий визуализацию таких помещений, как кухня, кабинет, спальня, основной и гостевой санузлы. Он детализирует элементы стиля и функциональные зоны квартиры. Проект демонстрирует уникальный подход к распределению пространства в интерьере.











































