Дизайн-проект квартиры в стиле
ПРОВАНС
Руководитель Журавель Сергей
Проверил Медяник Дмитрий
Проект Малич Анна
Дипломная работа
0
Техническое задание
Основная информация:
Молодая семья, 3 человека. Ведут активный образ жизни. Глава семьи – молодой
перспективный менеджер. Жена – работник туристической компании. Ребенок –
девочка 4-х лет. Пользуются услугами няни. Вместе завтракают и ужинают. Часто
собираются гости, иногда остаются на ночь. Домашнюю обстановку предпочитают
сдержанную , без лишних деталей, максимально функциональную. Отделочные
материалы – практичные.
Некоторые особенности помещений, зон:
- Гостинная с большим диваном для совместного досуга семьи и гостей.
- Полноценная изолированная кухня.
- Предусмотреть место для обеда с гостями.
- Детскую спроектировать на перспективу того, чтоб она подошла для
школьника.
- Предусмотреть небольшое рабочее место для родителей.
- Предусмотреть вместительные места для хранения.
- Предусмотреть спальное место для няни.
Стилевые предпочтения : прованс.
Прованс
Дизайн интерьеров в прованском стиле – дух простоты и
комфорта.
Французский провинциальный стиль прованс в переводе
и есть “провинция”.
Характерные черты:
- пастельные цвета
- очень легкие, невесомые шторы
- изящная, светлая, часто белая мебель
- светлые полы
- много живых цветов
- цветочные узоры
- оборки, кружево, ришелье, шитье
- много безделушек из фарфора, керамики, ткани
3
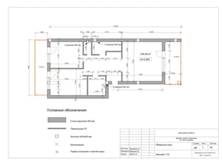
Рабочая документация
1 62ДП
2 55ДП
3 55ДП
4 55ДП
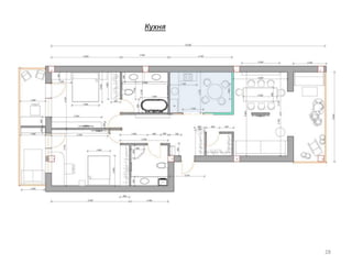
Визуализация
10
Детская
Обои : Chesapeake
коллекция GIRLS
RULE США
11
Детская
Мебель :
Artichoke Harmonie
Полы :
Паркетная доска
Tarkett Tango
Цвет : дуб зимний
Текстиль на окнах - кружево
Освещение: люстра Люстра
и бра Massive 41686/31/10
2 0 55
Детская
12
Детская
13
Детская
14
15
Балкон детской
Балкон детской
16
Пол: плитка керамическая
Imola Tivoli , Италия Мебель : Artichoke
Стены: деревянная вагонка,
цвет беленый дуб.
Текстиль
Освещениес: люстра
Massive 41925/1/1
Балкон детской
17
Балкон детской
18
19
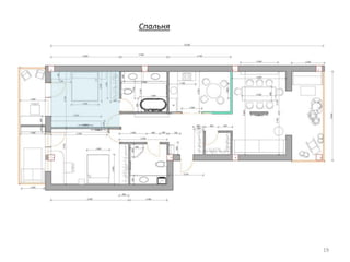
Спальня
Спальня
Полы :
Паркетная доска Tarkett Tango
Цвет : дуб зимний
Мебель : Artichoke
Стены : обои Chesapeake
коллекция GIRLS RULE США
20
Текстиль
Текстиль на окнах –кружево
Освещение: люстра и бра
Massive 41814/31/10
Спальня
21
Спальня
22
Спальня
23
24
Балкон спальни
Балкон спальни
25
Пол: керамогранит
CERDOMUS Ocean blue,
300 х 300 мм, Италия
Мебель : Artichoke
Стены: деревянная вагонка,
цвет беленый дуб.
Текстиль
Освещение : Люстра
MASSIVE 31634
Балкон спальни
26
Балкон спальни
27
28
Кухня
Кухня
29
Пол : керамическая плитка
Vives Monasterio RIBAS , 500 х 500 мм,
Испания
Стены :
- Vives Monasterio RIBAS , 10 х 10 мм, Испания
-стеклоблоки Mendini Collection Q19T 1side satin
finished
150х150 мм , Италия
Мебель : Artichoke
Освещение: люстра
EUROLAMPART RUSTICA
Смеситель Schock Luisina RC 800092 бронза
Кухня
30
Кухня
31
32
Гостинная - столовая
Стены:
-Обои ELITIS каталог TENUE de SOIREE, Франция
-Декоративная штукатурка Strikolith
Окрашена кварцевой краской KWARTSVERF
Цвет White Sand
Гостинная-Столовая
Полы :
Паркетная доска
Tarkett Tango
Цвет : дуб зимний
Текстиль
на окнах - кружево
Чугунный радиатор «Рэтро»
Освещение: Люстра и бра
La Lampada, Италия
33
Гостинная
34
Гостинная
35
Столовая
36
Столовая
37
38
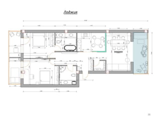
Лоджия
Лоджия
39
Стены : вагонка, окрашенная
универсальным твердым
маслом
Цвет Ral 5012
Полы :
Паркетная доска Tarkett Tango
Цвет : дуб зимний
Текстиль на окнах - кружево
Освещение: люстра
La Lampada, Италия
Лоджия
40
Лоджия
41
Хозяйский санузел
Стены – плитка La
Faenza коллекция ALICUDI
200х200 мм
Пол - плитка Peronda
коллекция Orfeo Idecori
200х200 мм
B.ALICUDI W
5x20 см
Санузел хозяйский
Умывальник : Herbeau Meuse
D = 40 см.
Ванна : Herbeau Eugenie
Унитаз : Herbeau
Josephine
Освещение : Люстра и бра
MASSIVE 73095/05
Смесители и аксессуары :
Nicolazzi, коллекция
El Capitan
Санузел хозяйский
Санузел хозяйский
Гостевой санузел
Гостевой санузел
Стены и пол – плитка керамическая фабрики La Faenza коллекция VENDOME
Унитаз : Devit Retro
3010127, Чехия
Умывальники : Herbeau 0406
Размеры: 57х45 см.
B.VOSGES W
10x30 см
COLONNE 36W1
30x60 см
Z.COLONNE 36W
30x60 см
PLACE 36W
30x60 см
Душевая кабина :
Kerasan Retro 90x90 см
PLACE 36W
30x30 см
Освещение: Люстра и бра
La Lampada, Италия
Смесители : Miglior, Коллекция Oxford
Гостевой санузел
Гостевой санузел
Холл
Холл
51
Стены : вагонка, окрашенная
универсальным твердым
маслом
Цвет Ral 5012
Полы :
Паркетная доска Tarkett Tango
Цвет : дуб зимний
Полы :
Паркетная
доска T Tango
Цвет : дуб
зимний
Мебель : Artichoke
Двери: Меранти, Украина
Освещение:
Люстра Linea Verdace Gondola 56005,
Бельгия
Встроенные светильники Brille 2446 white
52
Холл
53
Холл
54
Холл
Холл
Холл
Спасибо за внимание

Цветочное поле: дизайн-проект в стиле прованс