ajax
experience
In collaboration with gsmprjct°, Jimmy Lee and Sid Lee
general
INFORMATION
Contact us                                 An overview

ARCHITECTURAL DESIGN                       LoCATIoN
Sid Lee Architecture                       Rembrandtplein
75, Queen Street, suite 1500,              Utrechtsestraat 9
Montreal (Quebec)                          1017 DA Amsterdam
H3C 2N6 Canada

BRANDING AND GRAPHIC DESIGN                CLIENT
Sid Lee Amsterdam                          AFC AJAX N.V. Netherlands
Gerard Doustraat 72-80, 1072VV
Amsterdam, Netherlands                     TyPE
                                           Museum
TELEPHoNE
Montreal: 514-282-2200                     SURfACE (SCoPE)
Amsterdam: +31 20 66 23 030                1 000 m2

WEB SITE
www.sidleearchitecture.com                 CoNSTRUCTIoN BUDGET
www.sidlee.com                             4.2 M EUROS / 5.5 M$ CDN


CoNTACTS                                   PRoDUCTIoN
                                           August 2010 to Novembre 2011
Name
Jean Pelland
Phone                                      oCCUPATIoN
514-282-6834 ext 554                       November 2011
E-mail
jpelland@sidleearchitecture.com


PUBLIC RELATIoNS
Name: Marie-Eve Chaumont
Phone: 514-282-2200 ext 482
E-mail: media@sidlee.com




                                  ajax experience
                                       - 3 -
The challenge
"Amsterdam is Ajax. Ajax is Amsterdam ".   The over 100 year-old Ajax Amsterdam is a              In 2010, Sid Lee Architecture, in collaboration
                                                                                                  with gsmprjct°, Sid Lee, and Jimmy Lee, was
                                           Dutch football club based in Amsterdam. The
                                           city has completely adopted to this legendary          mandated by the AFC (Ajax Football Club) to
                                           and world-famous club: Amsterdam is Ajax, Ajax         create the brand new Ajax Experience, a museum
                                           is Amsterdam. The Dutch national team has              experience that praises the epic sports franchise,
                                           built its reputation over time, and the club has       allowing visitors to discover what has led Ajax
                                           won all the awards in the profession: the              to become one of the most respected teams in
                                           Champions' League, the UEFA Cup and the                the history of football.
                                           European Cup winners' cup.




                   ajax experience                                                      ajax experience
                        - 4 -                                                                - 5 -
We build giants...
                                                       Located beforehand at the Ajax Stadium in a more             iconic building called the bank that used to host
                                                       classic and smaller space, and then relocated at the         the ABN AMRO Bank, hence embodying this
                                                       Arena stadium on the outskirts of the city, the              legendary place that binds the team to its city.
                                                       Ajax football club's museum already attracted a
                                                       large number of football aficionados. However,               The Experience aims at celebrating a unique
                                                       the club wanted to give the museum a third life              history of successes through a series of playful
                                                       and have it this time in a more central location. So         and interactive events, and inspiring historical
                                                       the goal was to turn this museum into an experience          memories. Visitors will be initiated into the
                                                       and to reconnect it to the heart of its city,                discovery of the team’s history and its heroes,
                                                       Amsterdam.                                                   and they will find out what it takes to build a
                                                                                                                    young player into an iconic player, in essence
                                                       The Ajax Experience is located on the most                   how Ajax succeeds in building Giant players. At
                                                       popular square in the center of Amsterdam, the               the conclusion of the experience, visitors will
                                                       Rembrandtplein, not far from the place the club              fully understand how Ajax builds Giants.
                                                       was originally founded in 1900: the Café Oost-
                                                       Indië in Kalverstraat. The Experience was set in an




         “Two years ago, we thought: we
         have such great memorabilia
         here at the club. Why not put all
         of that into a great experience.
         And we’re an Amsterdam club.
         So why not go back to the heart
         of Amsterdam.”
                                                                                1                2
         Henri van der Aat, Ajax commercial director

5




                                                       LEGEND:      1. Rembrandt square   2. Statue of Rembrandt




    ajax experience                                                                                       ajax experience
         - 6 -                                                                                                 - 7 -
ajax experience   ajax experience
     - 8 -             - 9 -
3

                                                                                                             4                         2


                                                                                         7                       5
                                                                                                         6
                                                                                                     1


Walkthrough Experience
The project is built around the head of the trail:       The museum is divided into 7 big steps or
the stadium. It is located at the center of the          different experiences:
museum, and its stadium-like architecture gives
a "reverse bleachers" feel to the whole museum.          1. History Hall
                                                         2. The Ajax Academy
The trail is conceived as an enfilade so that the        3. The Locker room
visitors can fully live the developing process of an     4. The "Pitch"
athlete: from the Giants engraved in his memory
                                                         5. The Stadium
to his own glory on the field.
                                                         6. Ajax around the world
                                                         7. The Retail




                                                ajax experience                                                      ajax experience
                                                    - 10 -                                                               - 11 -
Step 1:

We build
giants
The history hall
With the ticket stand and a waiting area, the hall       with a triangulated surface, creating the effect of
is first and foremost branded with an imposing           a roughly sculpted surface with lines that
historical print that underlines the excellence          challenge gravity. Embedded in those sculpted
and the glory of the greatest players of the team,       walls are the different Giants and the historical
"the Giants". With free general admission and            timeline of the club spanning from 1900 to today,
visible from the street, the museum gives the            underlining the great events of the club as it
history of the club back to where it belongs: its        evolved each time with the birthing of great new
own city.                                                players. For the mural, the club officials had the
                                                         hard task of choosing 17 Giants worthy of being
The hall acts as a prelude to the experience and         part of the club's historical fresco.
the architecture spreads out in a sculptural wall




                                               ajax experience                                                 ajax experience
                                                   - 12 -                                                          - 13 -
ajax experience   ajax experience
    - 14 -            - 15 -
1
                              We wanted to create a strong, personalized,
                              dynamic, graphic identity that would live throughout
                              the experience.
                              We worked on 3 different layers to address various
                              aspects of the club's history:

                              1   WE BUILD GIANTS
                              We want to represent the Giants in a strong, iconic, and dynamic way. To bring all of the
                              enlarged pictures to the same level and create uniformity, we use high contrast black&white
                              and red&white pictures.




                  2


                              2   111 yEARS OF hISTORy
                              Quickly show and visualize important periods of great Ajax history with strong iconic typography.

                      3




                              3   GLORIOUS MOMENTS
                              Using a collage technique for photographic elements, and setting a strong and clear timeline, we
                              display all stories and anecdotes that made Ajax players become GIANTS and honor them with
                              being part of the wall.
                              Those anecdotes are chosen to satisfy tourists as well as hardcore fans who already know a lot about
                              their favorite club.




ajax experience                                                             ajax experience
    - 16 -                                                                      - 17 -
1                                    3                          5                          7                             9                     11                 13                               15                            17
Jan DE naTrIS                     SJaaK SWarT                     rUUD KrOl               FranK rIJKaarD              DEnnIS BErGKaMP        ClarEnCE SEEDOrF   EDWIn van DEr Sar               raFaël van DEr vaarT           CHrISTIan ErIKSEn
                      2                                 4                      6                                  8                     10                      12                         14                            16
                PIET van rEEnEn                     PIET KEIZEr           JOHan CrUIJFF                    MarCO van BaSTEn       DannY BlInD            JarI lITManEn          PaTrICK KlUIvErT                   WESlEY SnEIJDEr




                                  ajax experience                                                                                                                            ajax experience
                                      - 18 -                                                                                                                                     - 19 -
In the open vista (hall), 2 architectural
languages play against one another in a back
and forth game: the pure lines of the
bleachers versus the sculptural language of
the mural.




                                               ajax experience   ajax experience
                                                   - 20 -            - 21 -
Step 2:

The Ajax
aCADEMy
We build Giants

The academy offers a strong contrast to the          how the AFC turns young players into world-
public space of the hall as it is much darker and    famous athletes, as well as the club's training
multiple audio and visual elements are integrated.   methods based on the TIPS (technique, insight,
                                                     personality, and speed ) model.
In this section of the museum, visitors will learn
A. THE ''WELL'' OF TALENT
AJAX IS POWERED BY YOUTH

Witness how the renowned football club is also the best school of football,
empowering young athletes with superior football skills.

The well of talents acts as an introduction to the Ajax philosophy
and approach to football using the training program as a way
of conveying the essential ideas behind the club’s philosophy. This
section is the only pulsed space of the experience. It shows how the
athletes flourish through their training in the club; how they have
the potential within their reach to become Giants.




                                             ajax experience                  ajax experience
                                                 - 24 -                           - 25 -
b. THE ACADEMY
AJAX IS A SCHOOL WHERE FOOTBALL IS TAUGHT AND MASTERED

Ajax, as an academy of Giants, is an equilibrium between the people who
run it, the training methods and intelligence, and the club as an institution
and place where all of these people, ideas and athletes thrive.

The space is somewhat a “behind the scenes” of Ajax, explaining the context
in which it succeeds in training so many successful players. Between the
training methods, the club where success is cultivated, the people are
the ones that bring it together and build the culture and the players.

The idea is to understand the scope of various elements that act together
to build a Giant.




                                               ajax experience                  ajax experience
                                                   - 26 -                           - 27 -
TRAINING mETHoDS                 PEoPLE                                 CLUB
                              videoloop                   videoloop                              videoloop




                                       TRAINING mETHoDS            PEoPLE                         CLUB
                                          station 1              station 2                     station 3




                  After going through the Well of Talent,                    These videos are structured around interviews
                  visitors are greeted by three (3) two-minute               with individuals active in each of these spheres
                  documentaries, each presenting a strong                    (from trainers to management to fans).
                  element of the process:
                  1. The People
                  2. The Club Heritage
                  3. The Training Methods




ajax experience                                                  ajax experience
    - 28 -                                                           - 29 -
2 large showcases under the stadium present
the club heritage as a society, place and
cradle of success with apparel, trophies, and
a broad explanation of historical facts tied to
the memorabilia.




                                                  ajax experience   ajax experience
                                                      - 30 -            - 31 -
B                                        A
                                                          TECHNIQUE                                INSIGHT                                C
                                                          BooTHS                                   INTERACTIVE TABLES                     SPEED AREA




C. THE TrAiNiNg FiELD
After understanding the context and how the               The training field holds a series of play stations,
elements work together to form the academy,               each individually exploring the 4 key topics with
the visitor explores 275 m 2 of interactive features.     use of interactive technology. Similar to drills,
                                                          the activities are designed with a play & learn
T.I.P.S.: HOW TO TRAIN TO BECOME A GIANT                  approach, where content becomes embedded in
                                                          the physical experience.
This unique training program, developed by
Ajax, is key to becoming a Giant.




                                                 ajax experience                                                        ajax experience
                                                     - 32 -                                                                 - 33 -
Playing field


                                                                                                                                  1066mm Touch Screen
                                                                                                                                  (Ultra thin bevel)
                                                                                                                                  + multi-user interactive

                                                                                                                                  Insight basic info
                                                                                                                                  + graphics

                                                                                                                                  Profile metallic casing


                                                                                                                                  observation zone
                                                                                                                                  Graphic design on floor




                                                                                                  PLAyER 1
                                                                                                ComfoRT AREA
                  Graphic design on floor




                                                       oBSERVATIoN                                                                 oBSERVATIoN
                                                          zoNE                                    PLAyER 2                            zoNE
                                                                                                ComfoRT AREA




                     Insight
                      Insight: decyphering, anticipating, and playing the game.         These pods will give insights on different strategies, and
                                                                                        can be viewed either solo or with another person.
                      3 interactive tables are used as displays that hold different
                      insightful analyses on some of the greatest Ajax games.




ajax experience                                                               ajax experience
    - 34 -                                                                        - 35 -
TIPS                                                                                                                                                                                     01
                                                                                                                                                                                                                                                                                                                                                                           RICHTEN
                                                                                                                                                                                                                                                                                                                                                                                               OEFENING: RAAK DE TARGETS
                                                                                                                                                                                                                                                                                                                                                                                               TIPS OM JEZELF TE VERBETEREN:




                                                                                                                                                                                                                                                                                                                                                                           AIMING
                                                                                                                                                                                                                                                                                                                                                                                               1     De zuiverste pass krijg je door de binnenkant van je voet te gebruiken. Zorg dat een groot
                                                                                                                                                                                                                                                                                                                                                                                                     deel van je voet de bal raakt. Hierdoor blijft de bal laag bij de grond.

                                                                                                                                                                                                                                                                                                                                                                                               2     Probeer de bal in het midden, in het ‘hart’ te raken. Waar je de bal raakt bepaalt de richting
                                                                                                                                                                                                                                                                                                                                                                                                     van de bal. Als je de onderkant van de bal raakt, gaat de bal omhoog. Als je de bal in het




                                                                                                                                                                                                                                                   TIPS                                                                                                                                                                                                                                                                     02
                                                                                                                                                               'T' FOR TECHNIQUE
                                                                                                                                                                                                                                                                                                                                                                           01
                                                                                                                                                                                                                                                                                                                                                                                                     midden raakt, blijft de bal laag bij de grond.




                                                                                                                                                                                                                                                                                                                                                                                RICHTEN
                                                                                                                                                                                                                                                                                                                                                                                          OEFENING: RAAK DEde bal’. De positie is van invloed op de richting van de bal. Als je over
                                                                                                                                                                                                                                                                                                                                                                                           3 Houd je lichaam ‘boven TARGETS
                                                                                                                                                                                                                                                                                                                                                                                                     de bal heen leunt, zal de bal laag bij de grond blijven. Als je naar achteren leunt, zal de bal
                                                                                                                                                                                                                                                                                                                                                                                          TIPS OM omhoog gaan.
                                                                                                                                                                                                                                                                                                                                                                                                  JEZELF TE VERBETEREN:

                                                                                                                      TECHNIEK in het voetbal is de mate waarin een speler zowel zijn lichaam                 In football, TECHNIQUE refers to coordination between the body and the ball.
                                                                                                                                                                                                                                                                                                                                                                                AIMING
                                                                                                                                                                                                                                                                                                                                                                                           1    De zuiverste pass krijg je door de binnenkant van je voet te gebruiken. Zorg dat een groot
                                                                                                                                                                                                                                                                                                                                                                                               4 De positie van raakt. Hierdoor blijft belangrijk. Voor een zuivere pass ga je met de voet van je
                                                                                                                                                                                                                                                                                                                                                                                                deel van je voet de bal
                                                                                                                                                                                                                                                                                                                                                                                                                        je standbeen is
                                                                                                                                                                                                                                                                                                                                                                                                                                        de bal laag bij de grond.
                                                                                                                      als de bal kan coördineren, en de combinatie tussen die twee. Het is het                It is a player's ability to perform specific movements in a smooth and efficient                                                                                                       standbeen vlak naast de bal staan en wel zó, dat je tenen wijzen in de 'pass-richting'.
                                                                                                                      vermogen om bepaalde bewegingen gecoördineerd en effectief uit te voeren.               motion.                                                                                                                                                                      2    Probeer de bal in het midden, in het ‘hart’ te raken. Waar je de bal raakt bepaalt de richting
                                                                                                                      Techniek of voetbalvaardigheden ontwikkel je door veel te oefenen en door                                                                                                                                                                                                 van de bal. Als je de onderkant van de bal raakt, gaat de bal omhoog. Als je de bal in het




                                                                                                                                                                                                                                  'T' FOR TECHNIQUE
                                                                                                                      goed te kijken naar anderen. Door veel te trainen en te herhalen ontwikkel je           Football skills can be developed through repetition and observation. With                                                                                                         midden raakt, blijft de bal laag bij de grond.

                                                                                                                      je techniek op een natuurlijke manier. Daarnaast is het belangrijk goed naar            regular training and practice of a specific movement or technique, a player                                                                                                  3
                                                                                                                                                                                                                                                                                                                                                                                               EXERCISE: HITDe positie isTARGETS van de bal. Als je over
                                                                                                                                                                                                                                                                                                                                                                                                Houd je lichaam ‘boven de bal’.
                                                                                                                                                                                                                                                                                                                                                                                                                                THE van invloed op de richting
                                                                                                                      de techniek van goede spelers te kijken en hiervan te leren voor je eigen               can build confidence and the targeted movement can become natural. The act                                                                                                        de bal heen leunt, zal de bal laag bij de grond blijven. Als je naar achteren leunt, zal de bal
                                                                                                                      spel. Een goede techniek vormt de basis voor alle denkbare acties, van een              of observing other players' skills can help you to better your own technique.                                                                                                     omhoog gaan.
                                                                                                                                                                                                                                                                                                                                                                                               TIPS TO IMPROVE YOUR SKILLS:
                                                                                                                      dribbel tot het geven van 'tikkie breed' en van een balaanname tot een pass is de mate waarin een speler zowel zijn lichaamall conceivable actions, from dribbling
                                                                                                                                                                                 TECHNIEK in het voetbal      A good technique forms the basis for           In football, TECHNIQUE refers to coordination between the body and the ball.                                                  4    De positie van je standbeen is belangrijk. Voor een zuivere pass ga je met de voet van je
                                                                                                                      'over de hele'.                                                                         to playing the ball wide, and from receiving the ball to passing a long ball. movements in a smooth and efficient
                                                                                                                                                                                 als de bal kan coördineren, en de combinatie tussen die twee. Het is het    It is a player's ability to perform specific                                                                                      1standbeen vlak naast de bal staan en for greater precision. in de 'pass-richting'.
                                                                                                                                                                                                                                                                                                                                                                                                    Use the inside of your foot wel zó, dat je tenen wijzen
                                                                                                                                                                                              vermogen om bepaalde bewegingen gecoördineerd en effectief uit te voeren.                   motion.
                                                                                                                                                                                              Techniek of voetbalvaardigheden ontwikkel je door veel te oefenen en door
                                                                                                                                                                                              goed te kijken naar anderen. Door veel te trainen en te herhalen ontwikkel je               Football skills can be developed through repetition and observation. With                            2     Try to connect with the ball in the centre, in the 'heart'. Your point of contact with the ball will
                                                                                                                                                                                              je techniek op een natuurlijke manier. Daarnaast is het belangrijk goed naar                regular training and practice of a specific movement or technique, a player                     EXERCISE: HITdirection of the ball. If you connect with the bottom of the ball, the ball will go
                                                                                                                                                                                                                                                                                                                                                                                              determine the THE TARGETS
                                                                                                                                                                                              de techniek van goede spelers te kijken en hiervan te leren voor je eigen                   can build confidence and the targeted movement can become natural. The act                                 upwards. If you connect with the ball at its centre, the ball will stay low to the ground.
                                                                                                                                                                                              spel. Een goede techniek vormt de basis voor alle denkbare acties, van een                  of observing other players' skills can help you to better your own technique.                   TIPS TO IMPROVE YOUR SKILLS:
                                                                                                                                                                                              dribbel tot het geven van 'tikkie breed' en van een balaanname tot een pass                 A good technique forms the basis for all conceivable actions, from dribbling
                                                                                                                                                                                              'over de hele'.                                                                             to playing the ball wide, and from receiving the ball to passing a long ball.                    1   3 Your body your foot for greater precision. the ball’s direction. If you lean over the ball, the ball will
                                                                                                                                                                                                                                                                                                                                                                                                Use the inside of position will also influence
                                                                                                                                                                                                                                                                                                                                                                                                     stay low to the ground. If you lean backwards when you kick, you will force the ball upwards.




                                               01                                                                                                                                                                                                                                                                                                                         02
                                                                                                                                                                                                                                                                                                                                                                                           2    Try to connect with the ball in the centre, in the 'heart'. Your point of contact with the ball will
                                                                                                                                                                                                                                                                                                                                                                                               4 The position of your ball. If you connect with the bottom of the ball, the ball pass, plant the foot of your
                                                                                                                                                                                                                                                                                                                                                                                                determine the direction of the
                                                                                                                                                                                                                                                                                                                                                                                                                               standing leg is important. For an accurate
                                                                                                                                                                                                                                                                                                                                                                                                                                                                                 will go
                                                                                                                                                                                                                                                                                                                                                                                                upwards. If you connect with the ball at its centre, the ball will stay low to the ground.




                                                                                        RICHTEN
                                                                                                                                                                                                                                                                                                                                                                                                     standing leg just beside the ball with your toes pointing in the direction of the pass.



                                                                                                                                                                                                                                                                                                                                                                               TIMING
                                                                                                                                                                               OEFENING: RAAK DE TARGETS                                                                                                                                                                                   3   OEFENING: TIME ball’s direction. If you lean over the ball,PASS NAAR JE MEDESPELER
                                                                                                                                                                                                                                                                                                                                                                                                Your body position will also influence the EEN GERICHTE the ball will
                                                                                                                                                                                                                                                                                                                                                                                                stay low to the ground. If you lean backwards when you kick, you will force the ball upwards.

                                                                                                                                                                               TIPS OM JEZELF TE VERBETEREN:                                                                                                                                                                               4 TIPS position of your standing leg is important. For an accurate pass, plant the foot of your
                                                                                                                                                                                                                                                                                                                                                                                              The OM JEZELF TE VERBETEREN:




                                                                                        AIMING                                                                                                                                                                                                                                                                                 TIMING
                                                                                                                                                                                                                                                                                                                                                                                                standing leg just beside the ball with your toes pointing in the direction of the pass.

                                                                                                                                                                                1    De zuiverste pass krijg je door de binnenkant van je voet te gebruiken. Zorg dat een groot                                                                                                                 1    De zuiverste pass krijg je door de binnenkant van je voet te gebruiken. Wil je een pass geven
                                                                                                                                                                                     deel van je voet de bal raakt. Hierdoor blijft de bal laag bij de grond.                                                                                                                                        over een grotere afstand? Raak de bal dan met de zijkant van je voet in het midden, geef de
                                                                                                                                                                                                                                                                                                                                                                                                     bal voldoende snelheid mee en wijs de bal met de voet na.
                                                                                                                                                                                 2   Probeer de bal in het midden, in het ‘hart’ te raken. Waar je de bal raakt bepaalt de richting
                                                                                                                                                                                     van de bal. Als je de onderkant van de bal raakt, gaat de bal omhoog. Als je de bal in het                                                                                                                 2    Waar je de bal raakt bepaalt de richting van de bal. Als je de onderkant van de bal raakt, zal




TIPS                                                                                                                                        01                                                                                                                                                                                                                             02                                                                                                                                               03
                                                                                                                                                                                     midden raakt, blijft de bal laag bij de grond.                                                                                                                                                                  hij omhoog gaan. Als je de bal in het midden raakt, zal hij laag bij de grond blijven.




                                                                                                                                                                       RICHTEN                                                                                                                                                                                                   TIMING
                                                                                                                                                                                 3   Houd je lichaam ‘boven de bal’. De positie is van OEFENING: RAAK de bal. Als je over
                                                                                                                                                                                                                                         invloed op de richting van DE TARGETS                                                                                                            OEFENING: TIMElichaamGERICHTE PASS richting van de bal. Als je over de bal heen
                                                                                                                                                                                                                                                                                                                                                                                            3 De positie van je EEN is ook van invloed op de NAAR JE MEDESPELER
                                                                                                                                                                                     de bal heen leunt, zal de bal laag bij de grond blijven. Als je naar achteren leunt, zal de bal                                                                                                                 leunt, zal de bal laag bij de grond blijven. Als je naar achteren leunt, zal de bal omhoog gaan.
                                                                                                                                                                                     omhoog gaan.                                       TIPS OM JEZELF TE VERBETEREN:                                                                                                                     TIPS OM JEZELF TE VERBETEREN:
                                                                                                                                                                                                                                                                                                                                                                                                4

                                                                                                                                                                                                                                                                                                                                                                                 TIMING
                                                                                                                                                                                                                                                                                                                                                                                                     De positie van je standbeen is belangrijk. Blijf goed in evenwicht, zet je standbeen naast de


                                                                                                                                                                       AIMING
 ll.                                                                                                                                                                             4                                                     1 De zuiverste pass je met de voet van je
                                                                                                                                                                                     De positie van je standbeen is belangrijk. Voor een zuivere pass gakrijg je door de binnenkant van je voet te gebruiken. Zorg dat een groot                                                           1    De zuiverste pass krijg je door de binnenkant van je voet te gebruiken. Wil je een pass geven
                                                                                                                                                                                                                                                                                                                                                                                                     bal, houd je lichaam boven de bal en zwaai je voet naar achteren. Richt   daarbij je tenen naar
                                                                                                                                                                                                                                           deel van je voet de bal raakt. Hierdoor blijft de bal laag bij de grond.                                                                             over een grotere afstand? Raak de bal dan met de zijkant van je voet in het midden, geef de
ent                                                                                                                                                                                  standbeen vlak naast de bal staan en wel zó, dat je tenen wijzen in de 'pass-richting'.                                                                                                                    bal voldoende snelheid mee en wijs de balvoorde voet na.
                                                                                                                                                                                                                                                                                                                                                                                                     de grond zodat je wreef goed met de bal komt.
                                                                                                                                                                                                                                                  2   Probeer de bal in het midden, in het ‘hart’ te raken. Waar je de bal raakt bepaalt de richting
                                                                                                                                                                                                                                                      van de bal. Als je de onderkant van de bal raakt, gaat de bal omhoog. Als je de bal in het                                           2    Waar je de bal raakt bepaalt de richting van de bal. Als je de onderkant van de bal raakt, zal




OR TECHNIQUE
                                                                                                                                                                                                                                                      midden raakt, blijft de bal laag bij de grond.                                                                                            hij omhoog gaan. Als je de bal in het midden raakt, zal hij laag bij de grond blijven.
                                                                                                                                                                               EXERCISE: HIT THE TARGETS                                          3   Houd je lichaam ‘boven de bal’. De positie is van invloed op de richting van de bal. Als je over                                     3
                                                                                                                                                                                                                                                                                                                                                                                               EXERCISE: TIME invloed op de richting van dePASSover de bal heen TEAMMATE
                                                                                                                                                                                                                                                                                                                                                                                                De positie van je lichaam is ook van
                                                                                                                                                                                                                                                                                                                                                                                                                                     A CAREFUL bal. Als je TO YOUR
act                                                                                                                                                                                                                                                   de bal heen leunt, zal de bal laag bij de grond blijven. Als je naar achteren leunt, zal de bal                                           leunt, zal de bal laag bij de grond blijven. Als je naar achteren leunt, zal de bal omhoog gaan.
 .                                                                                                                                                                             TIPS TO IMPROVE YOUR SKILLS:
                                                                                                                                                                                                                                                      omhoog gaan.
                                                                                                                                                                                                                                                                                                                                                                                               TIPS TO IMPROVE YOUR SKILLS:
gzowel zijn lichaam                                                                                                                                                                                                                                                                                                                                                                        4    De positie van je standbeen is belangrijk. Blijf goed in evenwicht, zet je standbeen naast de
                                   In football, TECHNIQUE refers to coordination between the body and the ball.                                                                                                                                   4   De positie van je standbeen is belangrijk. Voor een zuivere pass ga je met de voet van je                                                 bal, houd je lichaam boven de bal en zwaai je voet naar achteren. Richt daarbij je tenen naar
 e twee. Het is het                It is a player's ability to perform specific movements in a smooth and efficient                                                             1    Use the inside of your foot for greater precision.               standbeen vlak naast de bal staan en wel zó, dat je tenen wijzen in de 'pass-richting'.                                                   1 grond zodatinside of your foot bal komt. aim.
                                                                                                                                                                                                                                                                                                                                                                                                de Use the je wreef goed voor de for better
 effectief uit te voeren.          motion.
l te oefenen en door
  herhalen ontwikkel je            Football skills can be developed through repetition and observation. With                                                                     2   Try to connect with the ball in the centre, in the 'heart'. Your point of contact with the ball will                                                                                                       2    Where you make contact with the ball determines the direction it goes in. If you kick underneath
t belangrijk goed naar             regular training and practice of a specific movement or technique, a player                                                                       determine the direction of the ball. If you connect with the bottom ofHIT THE TARGETS
                                                                                                                                                                                                                                           EXERCISE: the ball, the ball will go                                                                                                           EXERCISE: it will goA CAREFUL PASS TO YOUR TEAMMATE ground.
                                                                                                                                                                                                                                                                                                                                                                                              the ball, TIME upward. If you kick the middle of the ball, it will stay on the
eren voor je eigen                 can build confidence and the targeted movement can become natural. The act                                                                        upwards. If you connect with the ball at its centre, the ball will stay low to the ground.
kbare acties, van een              of observing other players' skills can help you to better your own technique.                                                                                                                                                                                                                                                                          TIPS3 IMPROVE YOUR SKILLS:
                                                                                                                                                                                                                                                                                                                                                                                              TO Your body position
                                                                                                                                                                                                                                                TIPS TO IMPROVE YOUR SKILLS:                                                                                                                                              also has an effect on whether the ball stays low or goes into the air. If you bend
 anname tot een pass               A good technique forms the basis for all conceivable actions, from dribbling
                                   to playing the ball wide, and from receiving the ball to passing a long ball.                                                                 3   Your body position will also influence the ball’s direction. Ifthe inside of overfoot for greater precision.
                                                                                                                                                                                                                                           1 Use
                                                                                                                                                                                                                                                     you lean your the ball, the ball will                                                                                                 1         over the ball, the ball will stay down to the ground. If you lean backwards you will force the ball to
                                                                                                                                                                                                                                                                                                                                                                                                Use the inside of your foot for better aim.
                                                                                                                                                                                     stay low to the ground. If you lean backwards when you kick, you will force the ball upwards.                                                                                                                   go up.



                                                                                             SCALE : 50%
                                                                                                                                                                                                                                                  2   Try to connect with the ball in the centre, in the 'heart'. Your point of contact with the ball will                                 2    Where you make contact with the ball determines the direction it goes in. If you kick underneath
                                                                                                                                                                                 4   The position of your standing leg is important. For an accurate pass, plant the ball. If you connect with the bottom of the ball, the ball will go
                                                                                                                                                                                                                                              determine the direction of the
                                                                                                                                                                                                                                                                             foot of your                                                                                                       4 ball, itposition of your standing leg is the ball, it willKeep your balance. Plant your standing leg next to
                                                                                                                                                                                                                                                                                                                                                                                                the
                                                                                                                                                                                                                                                                                                                                                                                                    The will go upward. If you kick the middle of important. stay on the ground.
                                                                                                                                                                                                                                              upwards. If you connect with the ball at its centre, the ball will stay low to the ground.
                                                                                                                                                                                     standing leg just beside the ball with your toes pointing in the direction of the pass.                                                                                                               3    Yourthe ball, keep youran effect on whetherball stays low or goes into the air. If you bend Point
                                                                                                                                                                                                                                                                                                                                                                                                      body position also has body above the ball and swing your foot backwards.                         your toes towards




                         02                                                                                                                                                                                                                                                                                                                                               03
                                                                                                                                                                                                                                                  3                                                                                                                                             over theball, the ball will stay down to the ground. If you lean backwards you willthe ball.ball to
                                                                                                                                                                                                                                                                                                                                                                                                     the ground, allowing your instep to make good contact with force the




ALE : 50%
                                                                                                                                                                                                                                                      Your body position will also influence the ball’s direction. If you lean over the ball, the ball will
                                                                                                                                                                                                                                                      stay low to the ground. If you lean backwards when you kick, you will force the ball upwards.                                             go up.




        TIMING                                                                                                                                                                                                                                                                                                                                                                 KRACHT
                                                                                                                                                              OEFENING: TIME EEN GERICHTE PASS The position justyour standing legwithimportant. pointingaccuratedirection of the pass. of your
                                                                                                                                                                                             4
                                                                                                                                                                                               NAAR JE MEDESPELER pass, plant the foot
                                                                                                                                                                                               standing leg
                                                                                                                                                                                                            of
                                                                                                                                                                                                                 beside the ball
                                                                                                                                                                                                                                  is
                                                                                                                                                                                                                                      your toes
                                                                                                                                                                                                                                                For an
                                                                                                                                                                                                                                                         in the
                                                                                                                                                                                                                                                                                                                                                                                           4
                                                                                                                                                                                                                                                                                                                                                                                               OEFENING: AFWERKENbalance. Plant youryour toes towards to
                                                                                                                                                                                                                                                                                                                                                                                                The position of your standing leg is important. Keep your
                                                                                                                                                                                                                                                                                                                                                                                                                                                            OP DE GOAL,next
                                                                                                                                                                                                                                                                                                                                                                                                the ball, keep your body above the ball and swing your foot backwards. Point
                                                                                                                                                                                                                                                                                                                                                                                                                                                                             standing leg
                                                                                                                                                                                                                                                                                                                                                                                                                                                                                          TRAP DE BAL ZO HARD ALS JE KUNT
                                                                                                                                                                                                                                                                                                                                                                                                the ground, allowing your instep to make good contact with the ball.

                                                                                                                                                              TIPS OM JEZELF TE VERBETEREN:                                                                                                                                                                                                    TIPS OM JEZELF TE VERBETEREN:




                                                                             TIMING                                                                                                                                                                                                                                                                                            FORCE
                                                                                                                                                               1   De zuiverste pass krijg je door de binnenkant van je voet te gebruiken. Wil je een pass geven                                                                                                                               1     Gebruik de wreef van je voet voor meer controle.
                                                                                                                                                                   over een grotere afstand? Raak de bal dan met de zijkant van je voet in het midden, geef de




                                                                                                                               02                                                                                                                                                                                                                                          03
                                                                                                                                                                   bal voldoende snelheid mee en wijs de bal met de voet na.                                                                                                                                                                    2    Schiet overtuigend, letterlijk recht op het doel af en met flinke snelheid.




                                                                                                                                                             TIMING                                                                                                                                                                                                              KRACHT
RAAK DE TARGETS                                                                                                                                                2   Waar je de bal raakt bepaalt de richting van de bal. Als je de onderkant van deEEN GERICHTE
                                                                                                                                                                                                                        OEFENING: TIME bal raakt, zal                                                PASS NAAR JE MEDESPELER                                                                3 Wijs elk schot na door met je voet de baan van de bal te volgen.
                                                                                                                                                                                                                                                                                                                                                                                          OEFENING: AFWERKEN OP DE GOAL, TRAP DE BAL ZO HARD ALS JE KUNT
                                                                                                                                                                   hij omhoog gaan. Als je de bal in het midden raakt, zal hij laag bij de grond blijven.
ERBETEREN:                                                                                                                                                                                                                       TIPS OM JEZELF TE VERBETEREN:                                                                                                                               4      De positie van je standbeen is belangrijk. Als je ver van de bal staat, zul je je been moeten
                                                                                                                                                                                                                                                                                                                                                                                          TIPS OM JEZELF TE VERBETEREN:
                                                                                                                                                               3   De positie van je lichaam is ook van invloed op de richting van de bal. Als je over de bal heen


                                                                                                                                                                                                                                                                                                                                                                                 FORCE
                                                                                                                                                                                                                                                                                                                                                                                                    strekken waardoor je precisie verliest. Als je standbeen voorbij de bal staat, zal het ook


                                                                                                                                                             TIMING
 krijg je door de binnenkant van je voet te gebruiken. Zorg dat een groot                                                                                          leunt, zal de bal laag bij de grond blijven. Als je naar achteren leunt, zal de je door de binnenkant van je voet te gebruiken. Wil je een pass geven
                                                                                                                                                                                                                            1 De zuiverste pass krijg bal omhoog gaan.                                                                                                                     1    Gebruik de wreef van jebal te richten. Zorg dus
                                                                                                                                                                                                                                                                                                                                                                                                   moeilijk zijn de voet voor meer controle.            dat je je standbeen altijd naast de bal zet, dan kun je
e bal raakt. Hierdoor blijft de bal laag bij de grond.                                                                                                                                                                                over een grotere afstand? Raak de bal dan met de zijkant van je voet in het midden, geef de
                                                                                                                                                                                                                                                                                                                                                                                                    beter richten en dus scoren.
                                                                                                                                                                                                                                      bal voldoende snelheid mee en wijs de bal met de voet na.                                                                                            2    Schiet overtuigend, letterlijk recht op het doel af en met flinke snelheid.
het midden, in het ‘hart’ te raken. Waar je de bal raakt bepaalt de richting                                                                                   4   De positie van je standbeen is belangrijk. Blijf goed in evenwicht, zet je standbeen naast de
de onderkant van de bal raakt, gaat de bal omhoog. Als je de bal in het                                                                                            bal, houd je lichaam boven de bal en zwaai je voet naar achteren. bal raakt bepaalt je tenen naar bal. Als je de onderkant van de bal raakt, zal
                                                                                                                                                                                                                          2 Waar je de Richt daarbij de richting van de                                                                                                                    3    Wijs elk schot na door met je voet de baan van de bal te volgen.
ft de bal laag bij de grond.                                                                                                                                                                                                 hij omhoog gaan. Als je de bal in het midden raakt, zal hij laag bij de grond blijven.

boven de bal’. De positie is van invloed op de richting van de bal. Als je over
                                                                                                                                                                   de grond zodat je wreef goed voor de bal komt.
                                                                                                                                                                                                                                  3   De positie van je lichaam is ook van invloed op de richting van de bal. Als je over de bal heen
                                                                                                                                                                                                                                                                                                                                                                                           4   EXERCISE: SHOOTINGver vanvoorbij staat,GOAL AS HARD AS YOU CAN
                                                                                                                                                                                                                                                                                                                                                                                                De positie van je standbeen is belangrijk. Als je AT de bal
                                                                                                                                                                                                                                                                                                                                                                                                strekken waardoor je precisie verliest. Als je standbeen
                                                                                                                                                                                                                                                                                                                                                                                                                                                         THEbalzul je jezal hetmoeten
                                                                                                                                                                                                                                                                                                                                                                                                                                                            de  staat,
                                                                                                                                                                                                                                                                                                                                                                                                                                                                         been
                                                                                                                                                                                                                                                                                                                                                                                                                                                                               ook
 zal de bal laag bij de grond blijven. Als je naar achteren leunt, zal de bal                                                                                                                                                         leunt, zal de bal laag bij de grond blijven. Als je naar achteren leunt, zal de bal omhoog gaan.                                                          moeilijk zijn de bal te richten. Zorg dus dat je je standbeen altijd naast de bal zet, dan kun je
                                                                                                                                                                                                                                                                                                                                                                                                beter richten en dus scoren.
                                                                                                                                                                                                                                                                                                                                                                                               TIPS TO IMPROVE YOUR SKILLS:
                                                                                                                                                             EXERCISE: TIME A CAREFUL PASSDe positie van je standbeen is belangrijk. Blijf goed in evenwicht, zet je standbeen naast de
                                                                                                                                                                                         4 TO YOUR TEAMMATE
                                                          Technique Booths
standbeen is belangrijk. Voor een zuivere pass ga je met de voet van je                                                                                                                                                               bal, houd je lichaam boven de bal en zwaai je voet naar achteren. Richt daarbij je tenen naar
                                                                                                                                                                                                                                                                                                                                                                                               1     Use the top of your foot for greater control over the ball.
aast de bal staan en wel zó, dat je tenen wijzen in de 'pass-richting'.
                                                                                                                                                              TIPS TO IMPROVE YOUR SKILLS:
                                                                                                                                                                                                                                      de grond zodat je wreef goed voor de bal komt.
                                                                                                                                                                                                                                                                                                                                                                                          EXERCISE: SHOOTING AT THE GOAL AS HARD AS YOU CAN
                                                                                                                                                                                                                                                                                                                                                                                                2    Shoot with conviction. Aim straight at the goal and with power.
HIT THE TARGETS                                                                                                                                                1   Use the inside of your foot for better aim.                   EXERCISE: TIME A CAREFUL PASS TO YOUR TEAMMATE                                                                                                           TIPS TO IMPROVE YOUR SKILLS:

                                                                                                                                                                                                                                                                                                                                                                                           1    3Use Point at your foot for greater control over the ball. the ball with your foot.
                                                                                                                                                                                                                                                                                                                                                                                                     the top of each shot by following the path of
R SKILLS:                                                                                                                                                      2   Where you make contact with the ball determines the direction it goes in. If you kick underneath
                                                                                                                                                                                                                       TIPS TO IMPROVE YOUR SKILLS:
                                                                                                                                                                                                                                                                                                                                                                                           2    4Shoot withposition of your standinggoal andimportant. If you’re too far from the ball, you will have to
                                                                                                                                                                                                                                                                                                                                                                                                    The conviction. Aim straight at the leg is with power.
 our foot for greater precision.                               Technique: mastering the moves is done by breaking them up into ball, it will go upward. Ifis displayedof in ball,Usewill insideonyour foot for better aim.
                                                                                                                                the
                                                                                                                                       Technique you kick the middle the 13 it the stay of the ground.
                                                                                                                                                                                                booths with distinctive
                                                                                                                                                                                                                                                                                                                                                                                           3     Point at each shot by following the path of the ball on your foot. This is also true if you're too far past the ball.
                                                                                                                                                                                                                                                                                                                                                                                                     stretch – this has a negative impact with your aim.
                                                               smaller exercises (drills), which are repeated until perfection is body position also has an effect on whether the ball stays lowin goes intowith the ball you bend the direction it goes in. If you kick underneath
 the ball in the centre, in the 'heart'. Your point of contact with the ball will                                            3 Your strategies. The booths are sealed you or temperedIf glass to
                                                                                                                                                                                           2 Where          make contact the air. determines                                                                                                                                                         Try to stay right next to the ball constantly. This will allow you to aim the ball where you want,
ction of the ball. If you connect with the bottom of the ball, the ball will go                                                 over the ball, the ball will stay down to the ground. If you lean backwardsupward. If you kickthe middle of the ball, it will stay on the ground.
                                                                                                                                                                                               the ball, it will go               the                                                                                                                                                      4     The when you want.
                                                                                                                                                                                                                                                                                                                                                                                                      position of your standing leg is important. If you’re too far from the ball, you will have to
                                                               reached.
nnect with the ball at its centre, the ball will stay low to the ground.
                                                                                                                                go up.
                                                                                                                                       minimize the sound of the ball. In front you will force booths is            of these ball to                                                                                                                                                             stretch – this has a negative impact on your aim. This is also true if you're too far past the ball.
                                                                                                                                                                                           3 Your body position also has an effect on whether ball stays low or goes into the air. If you bend                                                                                                   Try to stay right next to the ball constantly. This will allow you to aim the ball where you want,
 will also influence the ball’s direction. If you lean over the ball, the ball will                                                    a big flat panel with integrated the ball, the ball will stay down to thevideos lean backwards you will force the ball to
                                                                                                                                                                                               over screens showing ground. If you                                                                                                                                                               when you want.
                                                                                                                             4 The position of your standing leg is important. Keep your balance. Plant your standing leg next to
und. If you lean backwards when you kick, you will force the ball upwards.
                                                                                                                                       of the different techniques beinggorepresented.            up.
                                                                                                                                the ball, keep your body above the ball and swing your foot backwards. Point your toes towards
ur standing leg is important. For an accurate pass, plant the foot of your                                                                                                                                                        4   The position of your standing leg is important. Keep your balance. Plant your standing leg next to
eside the ball with your toes pointing in the direction of the pass.                                                                                               the ground, allowing your instep to make good contact withthe ball, keep your body above the ball and swing your foot backwards. Point your toes towards
                                                                                                                                                                                                                              the ball.
                                                                                                                                                                                                                                      the ground, allowing your instep to make good contact with the ball.




                                                                                                                                                              ajax experience                                                                                                                                                                                                             ajax experience
                                                                                                                                                                  - 36 -                                                                                                                                                                                                                      - 37 -
TIPS                                                                                                                                                                                   01   TARGETS
                                                                                                                                                                                                                                                                                                           OEFENING: DRIBBEL ZO SNEL MOGELIJK MET
                                                                                                                                                                                                                                                                                                           DE BAL VAN TARGET NAAR TARGET


                                                                                                                                                                                                                                                                                       TARGETS
                                                                                                                                                                                                                                                                                                           TIPS OM JEZELF TE VERBETEREN:

                                                                                                                                                                                                                                                                                                            1    Houd voor optimale controle contact met de bal wanneer je een korte afstand
                                                                                                                                                                                                                                                                                                                 dribbelt of wanneer je gaat kappen en draaien.




                                                                                                                                                         TIPS                                                                                                                      01    TARGETS
                                                                                                                                                                                                                                                                                                            2    Gebruik je wreef en de binnen- en buitenkant van je voet tijdens het dribbelen.
                                                                                                                                                                                                                                                                                                      OEFENING: DRIBBEL ZO SNEL MOGELIJK MET

                                                                                       'S' FOR SPEED                                                                                                                                                                                                  DE 3 Houd je gewicht op het voorste gedeelte van je voeten. Zo sta je op je ‘voorvoeten’;
                                                                                                                                                                                                                                                                                                         BAL VAN TARGET NAAR TARGET
                                                                                                                                                                                                                                                                                                                 als lichtvoetige speler ben je wendbaarder en draai je sneller.


                                                                                                                                                                                                                                                                                         TARGETS
                                                                                                                                                                                                                                                                                                      TIPS OM JEZELF TE VERBETEREN:
                                                                                                                                                                                                                                                                                                            4    Als je door je knieën gaat, is je lichaamszwaartepunt dichter bij de grond en de bal.
                                                                                                                                                                                                                                                                                                       1   Houd Dit geeft je controle contact met de bal wanneer je een wendbaarheid.
                                                                                                                                                                                                                                                                                                                 voor optimale een betere controle en een betere korte afstand
                                                                                                                                                                                                                                                                                                           dribbelt of wanneer je gaat kappen en draaien.
                             SNELHEID is het vermogen van een speler om bewegingen in een zo kort                                  SPEED is a player’s ability to perform movements as fast as possible. As football
                             mogelijke tijd uit te voeren. Voetbal is een ‘explosieve’ sport waarbij je veel te                    is an explosive sport, it involves a great deal of sudden changes and short sprints                                                                                 2   Gebruik je wreef en de binnen- en buitenkant van je voet tijdens het dribbelen.



                                                                                                                                                     'S' FOR SPEED
                             maken hebt met directe richtingsveranderingen en korte sprintjes met snelle                           that require quick start and stop actions. There are several types of speed,
                             start-stop acties. Er zijn verschillende soorten snelheid, die je ieder op een                        each requiring a different training approach.
                                                                                                                                                                                                                                                                                                       3   EXERCISE: DRIBBLEdraai je sneller.je op je ‘voorvoeten’; FROM
                                                                                                                                                                                                                                                                                                           Houd je gewicht op het voorste gedeelte van je voeten. Zo sta THE BALL
                                                                                                                                                                                                                                                                                                           als lichtvoetige speler ben je wendbaarder en
                                                                                                                                                                                                                                                                                                                                                           WITH
                             andere manier kunt trainen.
                                                                                                                                                                                                                                                                                                       4
                                                                                                                                                                                                                                                                                                           TARGET TO is je lichaamszwaartepunt dichter bij de ASen de bal.
                                                                                                                                                                                                                                                                                                           Als je door je knieën gaat, TARGET AS FAST grond POSSIBLE
                                                                                                                                 Starting speed is an athlete’s ability to go from a non-moving state to
                                                                                                                                    1                                                                                                                                                                      Dit geeft je een betere controle en een betere wendbaarheid.
                             1   Startsnelheid is het vermogen om vanuit stilstand explosief in beweging                         a moving state.
                                                                                         SNELHEID is het vermogen van een speler om bewegingen in een zo kort               SPEED is a player’s ability to perform movements as fast as possible. As football
                                 te komen.                                               mogelijke tijd uit te voeren. Voetbal is een ‘explosieve’ sport waarbij je veel te is an explosive sport, it involves a great deal of sudden changes and short sprints                                            TIPS TO IMPROVE YOUR SKILLS:
                                                                                         maken hebt met directe richtingsveranderingen en korte sprintjes met ability to increase speed while and stop actions. There are several types of speed,
                                                                                                                            2 Acceleration is an athlete’s snelle           that require quick start moving.
                                                                                         start-stop acties. Er zijn verschillende soorten snelheid, die je ieder op een     each requiring a different training approach.                                                                             EXERCISE: DRIBBLE WITH THE contact with the ball when you’re dribbling over
                                                                                                                                                                                                                                                                                                        1 For optimal control, you need to keep
                                                                                                                                                                                                                                                                                                                                                BALL FROM
                             2   Acceleratie is het vermogen om te versnellen vanuit stilstand of vanuit trainen.
                                                                                         andere manier kunt
                                                                                                                                 Maneuverability describes both the qualityStarting speed is an athlete’s ability to go from a non-moving state to
                                                                                                                                                                                                                                                                                                      TARGET TOdistance or when you need to make quick turns.
                                                                                                                                                                                                                                                                                                          a short TARGET AS FAST AS POSSIBLE
                                 een beweging.                                                                              3                                                1 and control of the movements
                                                                                          1 Startsnelheid is het vermogen om vanuit stilstand achieve in beweging
                                                                                                                                 an athlete can explosief and the speed at which an athlete can change
                                                                                                                                                                                 a moving state.
                                                                                                                                                                                                                                                                                                           2 Use the instep and
                                                                                                                                                                                                                                                                                                      TIPS TO IMPROVE YOUR SKILLS:          both the inside and outside of your foot when dribbling.
                                                                                             te komen.
                             3   Wendbaarheid staat voor de kwaliteit en de controle van de bewegingen                           direction.                                  2 Acceleration is an athlete’s ability to increase speed while moving.
                                 die je kunt leveren en de snelheid waarmee je van richting kunt
                                                                                          2 Acceleratie is het vermogen om te versnellen vanuit stilstand of vanuit                                                                                                                                    1   For optimal control, you need to keep contact withon the frontyou’re dribbling over
                                                                                                                                                                                                                                                                                                            3 Winning players keep their weight the ball when of their feet. Being                     ‘light footed‘ makes
                                                                                                                                                                                                                                                                                                           a short distance or when you need to make quick turns.
                                 veranderen.                                                 een beweging.                  4 Speed endurance is an athlete’s ability to maintain top levels of speed quality and control of the movements
                                                                                                                                                                             3 Maneuverability describes both the                                                                                                   players flexible and able to make quick turns.
                                                                                                                                 while performing repeated athletic actions an athlete becomingand the speed at which an athlete can change
                                                                                                                                                                                 without can achieve fatigued.                                                                                         2   Use the instep and both the inside and outside of your foot when dribbling.
                                                                                          3 Wendbaarheid staat voor de kwaliteit en de controle van de bewegingen                direction.                                                                                                                 4       When you bend your knees, you’re closer to the ground and to the ball. This will give you
                             4   Uithoudingsvermogen is het vermogen om gedurende lange tijdkunt leveren en de snelheid waarmee je van richting kunt
                                                                                             die je  een                                                                                                                                                                                               3   Winning players keep their weight on the front of their feet. Being ‘light footed‘ makes
                                                                                                                                                                                                                                                                                                                 better control of the ball and more maneuverability.




                                                                                                                                                                                                                                                                                  02                                                                                                                                           0
                                 lichamelijke inspanning vol te houden.                      veranderen.                                                                     4 Speed endurance is an athlete’s ability to maintain top levels of speed                                                     players flexible and able to make quick turns.
                                                                                                                                                                                                  while performing repeated athletic actions without becoming fatigued.
                                                                                                     4   Uithoudingsvermogen is het vermogen om gedurende lange tijd een                                                                                                                               4   When you bend your knees, you’re closer to the ground and to the ball. This will give you




                                                                                                                                                                                                                                                                                       TEGENSTAND
                                                                                                                                                                                                                                                                                                           better control of the ball and more maneuverability.
                                                                                                                                                                                                                                                                                                           OEFENING: DRIBBEL ZO SNEL MOGELIJK VAN TARGET
                                                                                                         lichamelijke inspanning vol te houden.


                                                                                                                                                                                                                                                                                                           NAAR TARGET TERWIJL JE DE TEGENSTANDER ONTWIJKT


                                                                                                                                                                                                                                                                                       RESISTANCE
                                                                                                                                                                                                                                                                                                           TIPS OM JE VAARDIGHEDEN TE VERBETEREN:

                                                                                                                                                                                                                                                                                                            1    Houd je kin omhoog en kijk goed om je heen. Hoe beter je overzicht, des te beter




                                                                                                                                                                                                                                                                                   02                                                                                                                                         03
                                                                                                                                                                                                                                                                                                                 je kunt anticiperen en reageren.




                                                                                                                                                                                                                                                                                         TEGENSTAND                                                                                                                                RO
                                                                                                                                                                                                                                                                                                            2    Gebruik je wreef en de binnen- en buitenkant van je voet tijdens het dribbelen.
                                                                                                                                                                                                                                                                                                                OEFENING: DRIBBEL ZO SNEL MOGELIJK VAN TARGET
                                                                                                                                                                                                                                                                                                            3   NAAR TARGEThet voorste gedeelteDE TEGENSTANDER‘voorvoeten’;
                                                                                                                                                                                                                                                                                                                 Houd je gewicht op TERWIJL JE van je voeten. Zo sta je op je ONTWIJKT
                                                                                                                                                                                                                                                                                                                 als lichtvoetige speler ben je wendbaarder en draai je sneller.


                                                                                                                                                                                                                                                                                         RESISTANCE                                                                                                                                PA
                                                                                                                                                                                                                                                                                                                TIPS OM JE VAARDIGHEDEN TE VERBETEREN:
                                                                                                                                                                                                                                                                                                            4    Als je door je knieën gaat, ben je dichter bij de grond en de bal. Dit geeft je meer
                                                                                                                                                                                                                                                                                                                1controle kin omhoog en kijk goed om je heen. Hoe beter je overzicht, des te beter
                                                                                                                                                                                                                                                                                                                   Houd je en een betere wendbaarheid.
                                                                                                                                                                                                                                                                                                                   je kunt anticiperen en reageren.

                                                                                                                                                                                                                                                                                                                2     Gebruik je wreef en de binnen- en buitenkant van je voet tijdens het dribbelen.

                                                                                                                                                                                                                                                                                                           EXERCISE:op het voorste gedeelteFROM TARGET TO TARGET AS QUICKLY
                                                                                                                                                                                                                                                                                                             3 Houd je gewicht DRIBBLE van je voeten. Zo sta je op je ‘voorvoeten’;
                                                                                                                                                                                                                                                                                                               als lichtvoetige speler ben je wendbaarder en draai je sneller.
                                                                                                                                                                                                                                                                                                           AS POSSIBLEgaat, ben je dichterAVOIDING Dit geeft jeOPPONENT
                                                                                                                                                                                                                                                                                                                                       WHILE bij de grond en de bal. THE meer
                     SCALE : 50%
                                                                                                                                                                                                                                                                                                             4 Als je door je knieën
                                                                                                                                                                                                                                                                                                                      controle en een betere wendbaarheid.




ALE : 50%
                                                                                                                                                                                                                                                                                                           TIPS TO IMPROVE YOUR SKILLS:

                                                                                                                                                                                                                                                                                                            1
                                                                                                                                                                                                                                                                                                                EXERCISE: up! Look up from the ball, and see what’sTARGETaround you.
                                                                                                                                                                                                                                                                                                                 Keep your chin
                                                                                                                                                                                                                                                                                                                                DRIBBLE FROM TARGET TO happening AS QUICKLY
                                                                                                                                                                                                                                                                                                                AS POSSIBLE the faster you can anticipate and react.
                                                                                                                                                                                                                                                                                                                 The more you see, WHILE AVOIDING THE OPPONENT

                                                                                                                                                                                                                                                                                                            2    Use the instep and both the inside and outside
                                                                                                                                                                                                                                                                                                                TIPS TO IMPROVE YOUR SKILLS:                                    of your foot when dribbling.
                                                                                                                                                                                                                                                                                                                1  Keep your chin up! Look
                                                                                                                                                                                                                                                                                                            3    Winning players keep up from the ball,on the front of their feet. Being ‘light footed‘
                                                                                                                                                                                                                                                                                                                                            their weight and see what’s happening around you.
                                                                                                                                                                                                                                                                                                                   The more you see, the faster you can anticipate and react.
                                                                                                                                                                                                                                                                                                                 makes Giants flexible and able to make quick turns.
                                                                                                                                                                                                                                                                                                                2     Use the instep and both the inside and outside of your foot when dribbling.
                                                                                                                                                                                                                                                                                                            4    When you bend your knees, you’re closer to the ground and to the ball.
                                                                                                                                                                                                                                                                                                                3  Winning players keep their weight on the front of their feet. Being ‘light footed‘
                                                                                                                                                                                                                                                                                                                 This willGiants flexible and able to make quick ball, and more maneuverability.
                                                                                                                                                                                                                                                                                                                   makes
                                                                                                                                                                                                                                                                                                                           give you better control of the turns.

                                                                                                                                                                                                                                                                                                                4     When you bend your knees, you’re closer to the ground and to the ball.




         02                                                                                                                                                                                                                                                                       03
                                                                                                                                                                                                                                                                                                                      This will give you better control of the ball, and more maneuverability.




                                 TEGENSTAND                                                                                                                                                                                                                                             ROUTE
                                                                                                                          OEFENING: DRIBBEL ZO SNEL MOGELIJK VAN TARGET                                                                                                                                    OEFENING: DRIBBEL MET DE BAL ZO SNEL MOGELIJK
                                                                                                                          NAAR TARGET TERWIJL JE DE TEGENSTANDER ONTWIJKT                                                                                                                                  TERWIJL JE DE LIJN VOLGT


                                 RESISTANCE                                                                                                                                                                                                                                             PATH
                                                                                                                          TIPS OM JE VAARDIGHEDEN TE VERBETEREN:                                                                                                                                           TIPS OM JEZELF TE VERBETEREN:




                                                                          02                                                                                                                                                                                                       03
                                                                                                                           1   Houd je kin omhoog en kijk goed om je heen. Hoe beter je overzicht, des te beter                                                                                            1    Gebruik de binnenkant van je voet tijdens het dribbelen. Dat geeft je de meeste


                                                                                                         TEGENSTAND                                                                                                                                                                       ROUTE
                                                                                                                               je kunt anticiperen en reageren.          OEFENING: DRIBBEL ZO SNEL             MOGELIJK VAN TARGET                                                                    OEFENING: DRIBBEL MET DE Het geeft je SNEL MOGELIJK
                                                                                                                                                                                                                                                                                                         controle over de richting van de bal. BAL ZO ook meer balgevoel, waardoor
                                                                                                                                                                         NAAR TARGET TERWIJL JE DE TEGENSTANDER ONTWIJKT                                                                              TERWIJL JE DE LIJN VOLGT
                                                                                                                                                                                                                                                                                                         je sneller kunt reageren.
                                                                                                                           2   Gebruik je wreef en de binnen- en buitenkant van je voet tijdens het dribbelen.



                                                                                                         RESISTANCE                                                                                                                                                                       PATH
                                                                                                                                                                                                                                                                                                           2    Gebruik je beste voet om te dribbelen.
                                                                                                                                                                                      TIPS OM JE VAARDIGHEDEN TE VERBETEREN:                                                                          TIPS OM JEZELF TE VERBETEREN:
                                                                                                                           3   Houd je gewicht op het voorste gedeelte van je voeten. Zo sta je op je ‘voorvoeten’;
                                                                                                                               als lichtvoetige speler ben je wendbaarder en draai je kin omhoog en kijk goed om je heen. Hoe beter je overzicht, des te beter
                                                                                                                                                                           1 Houd je sneller.                                                                                                          1   3 Gebruik beide voeten om de richting van de bal te controleren.
                                                                                                                                                                                                                                                                                                           Gebruik de binnenkant van je voet tijdens het dribbelen. Dat geeft je de meeste
                                                                                                                                                                                           je kunt anticiperen en reageren.                                                                                controle over de richting van de bal. Het geeft je ook meer balgevoel, waardoor
                                                                                                                           4   Als je door je knieën gaat, ben je dichter bij de grond en de bal. Dit geeft je meer                                                                                        je sneller kunt reageren.
                                                                                                                                                                               2 Gebruik je wreef en de binnen- en buitenkant van je voet tijdens het dribbelen.
                                                                                                                               controle en een betere wendbaarheid.
                                                                                                                                                                                                                                                                                                           EXERCISE: DRIBBLE THE BALL AS FAST AS POSSIBLE
                                                                                                                                                                                                                                                                                                       2   Gebruik je beste voet om te dribbelen.
                                                                                                                                                                                       3   Houd je gewicht op het voorste gedeelte van je voeten. Zo sta je op je ‘voorvoeten’;
                                                                                                                                                                                           als lichtvoetige speler ben je wendbaarder en draai je sneller.                                             3   Gebruik beide voeten om de richting van de bal te controleren.
                                                                                                                                                                                                                                                                                                           WHILE FOLLOWING THE LINE
                                                                                                                                                                                                                                      SCALE : 50%
                                                                                                                          EXERCISE: DRIBBLE FROM 4 Als je door je knieën gaat, ben je dichter bijAS QUICKLY je meer
                                                                                                                                                 TARGET betere wendbaarheid. de grond en de bal. Dit geeft
                                                                                                                                                   controle en een
                                                                                                                                                                    TO TARGET
                                                                                                                          AS POSSIBLE WHILE AVOIDING THE OPPONENT                                                                                                                                     EXERCISE: DRIBBLE THE BALL AS FAST AS POSSIBLE
                                                                                                                                                                                                                                                                                                       TIPS TO IMPROVE YOUR SKILLS:




                                                                                                                                                                         SCALE : 50%
                                                                                                                                                                                                                                                                                                      WHILE FOLLOWING THE LINE
                                                                                                                                                                                      EXERCISE: DRIBBLE FROM TARGET TO TARGET AS QUICKLY                                                                        Use the inside of your foot while dribbling to control the ball better. This also gives
                                                                                                                                                                                                                                                                                                           1


      Speed
                                                                                                                          TIPS TO IMPROVE YOUR SKILLS:                                AS POSSIBLE WHILE AVOIDING THE OPPONENT                                                                         TIPS TO IMPROVE YOUR sensitivity
                                                                                                                                                                                                                                                                                                               you greater SKILLS:     over the ball, and allows you to react more quickly.

                                                                                                                           1   Keep your chin up! Look up from the ball, and see what’s happening around you.                                                                                          1   Use the inside of your foot while dribbling to control the ball better. This also gives
                                                                                                                                                                                                                                                                                                           2 greater sensitivity over the ball, and allows you to react more quickly.
                                                                                                                                                                                                                                                                                                               Dribble with your best foot.
                                                                                                                                                                              TIPS TO IMPROVE YOUR SKILLS:                                                                                                 you
                                                                                                                               The more you see, the faster you can anticipate and react.
                                                                                                                                                                                       1   Keep your chin up! Look up from the ball, and see what’s happening around you.                              2   3 Use both feet to control the ball direction.
                                                                                                                                                                                                                                                                                                           Dribble with your best foot.
                                                                                                                           2   Use the instep and both the inside and outside of           your foot when the faster you can anticipate and react.
                                                                                                                                                                                           The more you see, dribbling.
                                                                                                                                                                                                                                                                                                       3   Use both feet to control the ball direction.
                                                                                                                                                                                       2   Use the instep and both the inside and outside of your foot when dribbling.
                                                                                                                           3   Winning players keep their weight on the front of their feet. Being ‘light footed‘
      Speed: comes down to pure raw reflexes.                                               to it explaining the Giants flexible and skillmake quick turns. Giants flexible theirable to make quick turns. feet. Being ‘light footed‘
                                                                                                               makes different able to strategies and keep
                                                                                                                                                      3 Winning players
                                                                                                                                                         makes              and
                                                                                                                                                                                  weight on the front of their

                                                                                            techniques requiredWhenimprove your you’re closer to the4 groundyou bend your knees, you’re closer to the ground and to the ball.
                                                                                                             4  to you bend your knees, game.            When and to the ball.
      The speed area is achieved by the same 3 stations and is                                                                 This will give you better control of the ball, and more maneuverability.
                                                                                                                                                                                    This will give you better control of the ball, and more maneuverability.
      framed with an arch. Information surfaces are attached




                                                                                ajax experience                                                                                                                                                                                                       ajax experience
                                                                                    - 38 -                                                                                                                                                                                                                - 39 -
Step 3:

The locker
room
The most sacred place in the stadium

Blood, sweat & tears: Character and dedication         The darker side of the exhibit is created by a dark
distinguish great players from the merely              one-way mirror.
ordinary.
                                                       Looped videos with the coach pronouncing
The visitor is in the player’s position, the coach     2 speeches are retroprojected on a mirrored wall.
addresses them, confronting them on the scope
of challenges they are about to face and the           The built environment (diorama) and the coach’s
importance of believing in themselves. As most         speech (presented behind a one-way glass) propels
of Ajax philosophy is verbal in nature and has         the visitors into the players’ shoes, giving them
passed from coach to athletes over the years by        an insightful appreciation of the relationship,
the means of speeches and conversations, the           and how this ties into the development of an
locker room explores this relationship. Architects     athlete.
recreated fragments of the arena locker room and
amplified their presence with a mirror effect in a
yin/yang type of space.




                                              ajax experience                                                ajax experience
                                                  - 40 -                                                         - 41 -
ajax experience   ajax experience
    - 42 -            - 43 -
Step 4:

The
tunnel
Action is now

The tunnel is a moment of transition and               guiding them to the stadium. The audio track
mounting excitement between the locker room            amplifies the simulation: a growing hum and the
and the stadium.                                       crowd roaring and cheering in the stadium can
                                                       be heard along with the Ajax club chant, calling
It is a darkened passage with a wall treatment of      out to the visitor.
shadows of players walking alongside the visitor,




                                              ajax experience                                             ajax experience
                                                  - 44 -                                                      - 45 -
ajax experience   ajax experience
    - 46 -            - 47 -
Step 5:

The
                                       Leaving the tunnel, visitors follow the sound of the         This sequence of moments is projected simultaneously
                                       crowd and enter the stadium, the largest space yet and       on 4 screens, fully immersing the visitor.
                                       the climax of the experience. Witness how Ajax – its
                                       club, its people, its culture – has achieved world-class     The Stadium area is a reference to a real stadium



stadium
                                       recognition through its players. Through the Giants,         with the lower portion accessible for people to sit
                                       the AJAX spirit is alive and well in the stadium. The        and the higher portion dedicated to the immersive
                                       stadium is a grandiose conclusion to the experience.         projections. The immersion experience is achieved
                                       The synthesis is achieved by a videoportrait of the          by a blended large-scale projection. The soundtrack
                                       Club under 3 different magnifying glasses: Ajax as a         is also amplified by the sense of a larger-than-
Witness the Giants                     team, the 17 Giants and the supporters, all focusing         life space.
                                       on how they have reached this status of greatness.




                     ajax experience                                                       ajax experience
                         - 48 -                                                                - 49 -
Step 6:

Ajax around
the world
We are Ajax. We, the fans, are Giants.

Leaving the stadium, visitors enter a last             a tribute to their devotion and loyalty.
exhibition experience, before entering the
retail space.                                          This section aims to give the opportunity to each
                                                       fan to participate the House of Ajax in their own
The last exhibition space in the Experience            way. Meet the fans behind the building of Giants.
is totally devoted to and for the fans. The space
is a dialogue between Ajax and its supporters,




                                              ajax experience                                              ajax experience
                                                  - 50 -                                                       - 51 -
Step 7:

The
retail
Completing the Experience

The retail space is the final stop before leaving       The retail area is serviced by the main counter
the Experience. The retail displays are                 that also provides information, ticketing, and
designed to follow the same esthetics as the            a cashier. The high ceilings of the space are
rest of the open hall. It embodies the sculptural       also emphasized by high large-scale displays
effects created in the open vista with, in              that showcase some of the jerseys and balls
addition, 3 lines of light conveying the                that are sold on the premises.
relationship between Ajax and Adidas, one of
their main sponsors.




                                              ajax experience                                             ajax experience
                                                  - 52 -                                                      - 53 -
ajax experience   ajax experience
    - 54 -            - 55 -
Plans             Summary:

                  Total surface area:                           1000 m2


and layout
                  Total experience duration:                    60 minutes
                  Visitors in space at a time:                  137

How we built it
                  CAPACITy :

                  ExPERIENCE                     SURfACE AREA     VISIToRS IN SPACE AT A TImE     ExPERIENCE
                                                                                                DURATIoN (mIN)

                   History Hall                  148,3 m2                    129
                   Reception                     20,4 m2                      -
                   The well of talent            47,2 m2                     11                      5
                   Giant Academy                 118,1 m2                    23                      10
                   Training field                275,8 m2                    46                      20
                   The locker room               41,3 m2                     11                      5
                   The tunnel                    13,3 m2                      -
                   The stadium                   186 m2                      34                      15
                   Ajax around the world         50,4 m2                      -
                   Be a Giant (retail)           86,3 m2                      -
5       2




                       1




    4

                                                                           4




3

                                                                           3




                   1



        Ground floor
                                                 5   2
        no scale




                           ajax experience               ajax experience
                               - 58 -                        - 59 -
1                                        2




                   3




    Ground floor
    Scale: 1:100




                       ajax experience       ajax experience
                           - 60 -                - 61 -
4




               5




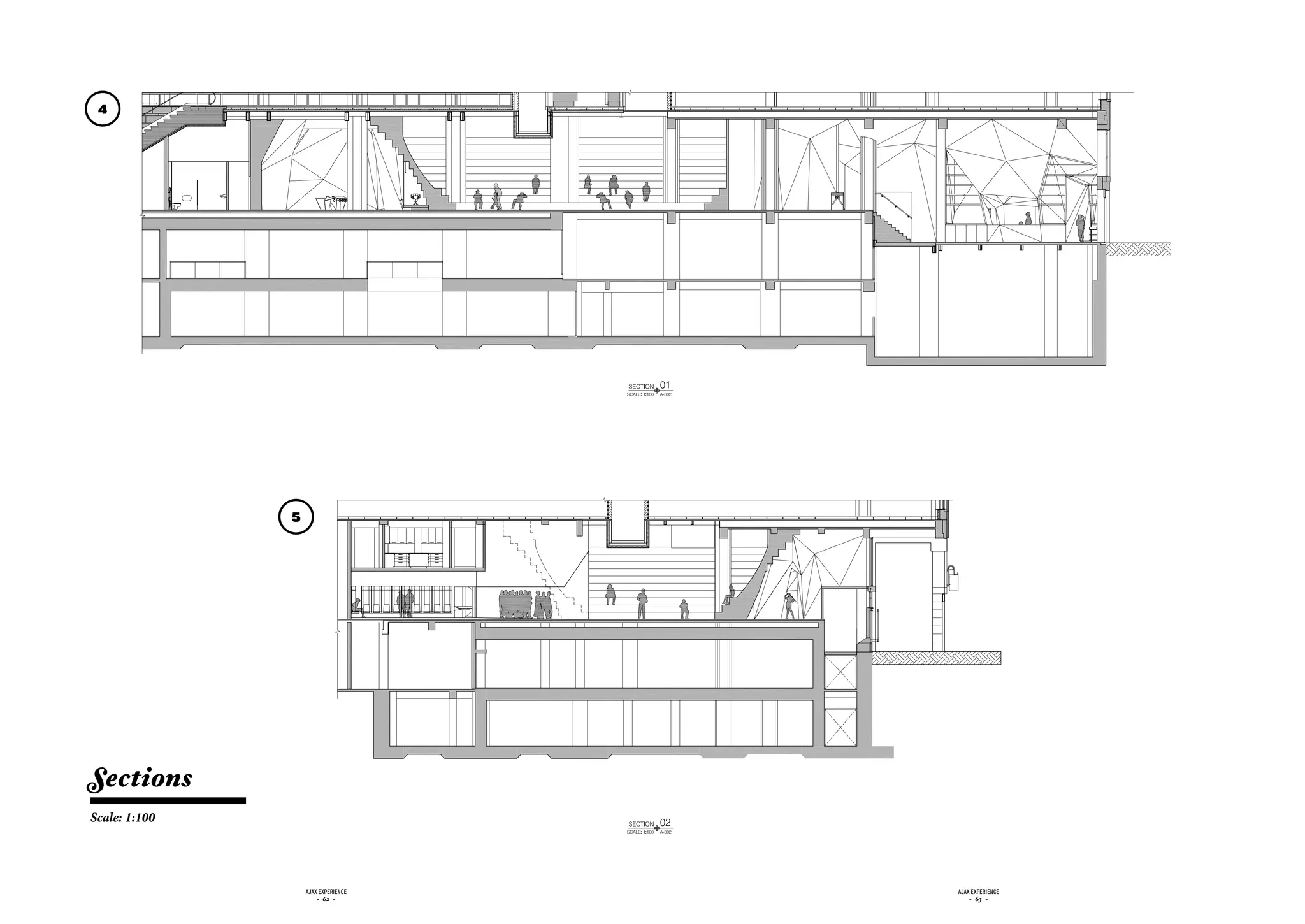
Sections
Scale: 1:100




                   ajax experience   ajax experience
                       - 62 -            - 63 -
3
                                        1

                                            1




                                            2




2




                                            3




    Retail sections
    no scale




                      ajax experience           ajax experience
                          - 64 -                    - 65 -
Credits

                  ARCHITECTURAL DESIGN                                 BRANDING AND GRAPHIC DESIGN
                  Sid Lee Architecture                                 Sid Lee Amsterdam
                  75, Queen Street, Suite 1500,                        Gerard Doustraat 72-80, 1072VV
                  Montréal (Québec)                                    Amsterdam, Netherlands
                  H3C 2N6 Canada                                       +31 20 66 23 030
                  514-282-6834                                         sidlee.com
                  sidleearchitecture.com
                                                                       BUILDERS: PRofESSIoNAL CoNSTRUCTIoN STUDIo
                  INTERACTIVE & mUSEUm ExHIBIT + mULTImEDIA            Fiction Factory
                  gsmprjct°                                            1033 NX Amsterdam
                  777, de la Commune ouest, suite 200                  +31 20 63 52 424
                  Montréal (Québec)                                    fictionfactory.nl
                  H3C 1Y1 Canada
                  514-288-4233                                         PHoToS
                  gsmprjct.com                                         Ewout Huibers
                                                                       +31 62 95 94 778
                  VIDEo PRoDUCTIoN                                     ewout.tv
                  Jimmy Lee
                  50 Queen Street, 4th floor
                  Montréal (Québec)
                  H3C 2N5 Canada
                  514-875-5533
                  jimmylee.tv




ajax experience                                               ajax experience
    - 66 -                                                        - 67 -
Another SIDLEE ARChITECTURE fanzine

SID LEE ARCHITECTURE | The Ajax Experience

  • 1.
    ajax experience In collaboration withgsmprjct°, Jimmy Lee and Sid Lee
  • 2.
    general INFORMATION Contact us An overview ARCHITECTURAL DESIGN LoCATIoN Sid Lee Architecture Rembrandtplein 75, Queen Street, suite 1500, Utrechtsestraat 9 Montreal (Quebec) 1017 DA Amsterdam H3C 2N6 Canada BRANDING AND GRAPHIC DESIGN CLIENT Sid Lee Amsterdam AFC AJAX N.V. Netherlands Gerard Doustraat 72-80, 1072VV Amsterdam, Netherlands TyPE Museum TELEPHoNE Montreal: 514-282-2200 SURfACE (SCoPE) Amsterdam: +31 20 66 23 030 1 000 m2 WEB SITE www.sidleearchitecture.com CoNSTRUCTIoN BUDGET www.sidlee.com 4.2 M EUROS / 5.5 M$ CDN CoNTACTS PRoDUCTIoN August 2010 to Novembre 2011 Name Jean Pelland Phone oCCUPATIoN 514-282-6834 ext 554 November 2011 E-mail jpelland@sidleearchitecture.com PUBLIC RELATIoNS Name: Marie-Eve Chaumont Phone: 514-282-2200 ext 482 E-mail: media@sidlee.com ajax experience - 3 -
  • 3.
    The challenge "Amsterdam isAjax. Ajax is Amsterdam ". The over 100 year-old Ajax Amsterdam is a In 2010, Sid Lee Architecture, in collaboration with gsmprjct°, Sid Lee, and Jimmy Lee, was Dutch football club based in Amsterdam. The city has completely adopted to this legendary mandated by the AFC (Ajax Football Club) to and world-famous club: Amsterdam is Ajax, Ajax create the brand new Ajax Experience, a museum is Amsterdam. The Dutch national team has experience that praises the epic sports franchise, built its reputation over time, and the club has allowing visitors to discover what has led Ajax won all the awards in the profession: the to become one of the most respected teams in Champions' League, the UEFA Cup and the the history of football. European Cup winners' cup. ajax experience ajax experience - 4 - - 5 -
  • 4.
    We build giants... Located beforehand at the Ajax Stadium in a more iconic building called the bank that used to host classic and smaller space, and then relocated at the the ABN AMRO Bank, hence embodying this Arena stadium on the outskirts of the city, the legendary place that binds the team to its city. Ajax football club's museum already attracted a large number of football aficionados. However, The Experience aims at celebrating a unique the club wanted to give the museum a third life history of successes through a series of playful and have it this time in a more central location. So and interactive events, and inspiring historical the goal was to turn this museum into an experience memories. Visitors will be initiated into the and to reconnect it to the heart of its city, discovery of the team’s history and its heroes, Amsterdam. and they will find out what it takes to build a young player into an iconic player, in essence The Ajax Experience is located on the most how Ajax succeeds in building Giant players. At popular square in the center of Amsterdam, the the conclusion of the experience, visitors will Rembrandtplein, not far from the place the club fully understand how Ajax builds Giants. was originally founded in 1900: the Café Oost- Indië in Kalverstraat. The Experience was set in an “Two years ago, we thought: we have such great memorabilia here at the club. Why not put all of that into a great experience. And we’re an Amsterdam club. So why not go back to the heart of Amsterdam.” 1 2 Henri van der Aat, Ajax commercial director 5 LEGEND: 1. Rembrandt square 2. Statue of Rembrandt ajax experience ajax experience - 6 - - 7 -
  • 5.
    ajax experience ajax experience - 8 - - 9 -
  • 6.
    3 4 2 7 5 6 1 Walkthrough Experience The project is built around the head of the trail: The museum is divided into 7 big steps or the stadium. It is located at the center of the different experiences: museum, and its stadium-like architecture gives a "reverse bleachers" feel to the whole museum. 1. History Hall 2. The Ajax Academy The trail is conceived as an enfilade so that the 3. The Locker room visitors can fully live the developing process of an 4. The "Pitch" athlete: from the Giants engraved in his memory 5. The Stadium to his own glory on the field. 6. Ajax around the world 7. The Retail ajax experience ajax experience - 10 - - 11 -
  • 7.
    Step 1: We build giants Thehistory hall With the ticket stand and a waiting area, the hall with a triangulated surface, creating the effect of is first and foremost branded with an imposing a roughly sculpted surface with lines that historical print that underlines the excellence challenge gravity. Embedded in those sculpted and the glory of the greatest players of the team, walls are the different Giants and the historical "the Giants". With free general admission and timeline of the club spanning from 1900 to today, visible from the street, the museum gives the underlining the great events of the club as it history of the club back to where it belongs: its evolved each time with the birthing of great new own city. players. For the mural, the club officials had the hard task of choosing 17 Giants worthy of being The hall acts as a prelude to the experience and part of the club's historical fresco. the architecture spreads out in a sculptural wall ajax experience ajax experience - 12 - - 13 -
  • 8.
    ajax experience ajax experience - 14 - - 15 -
  • 9.
    1 We wanted to create a strong, personalized, dynamic, graphic identity that would live throughout the experience. We worked on 3 different layers to address various aspects of the club's history: 1 WE BUILD GIANTS We want to represent the Giants in a strong, iconic, and dynamic way. To bring all of the enlarged pictures to the same level and create uniformity, we use high contrast black&white and red&white pictures. 2 2 111 yEARS OF hISTORy Quickly show and visualize important periods of great Ajax history with strong iconic typography. 3 3 GLORIOUS MOMENTS Using a collage technique for photographic elements, and setting a strong and clear timeline, we display all stories and anecdotes that made Ajax players become GIANTS and honor them with being part of the wall. Those anecdotes are chosen to satisfy tourists as well as hardcore fans who already know a lot about their favorite club. ajax experience ajax experience - 16 - - 17 -
  • 10.
    1 3 5 7 9 11 13 15 17 Jan DE naTrIS SJaaK SWarT rUUD KrOl FranK rIJKaarD DEnnIS BErGKaMP ClarEnCE SEEDOrF EDWIn van DEr Sar raFaël van DEr vaarT CHrISTIan ErIKSEn 2 4 6 8 10 12 14 16 PIET van rEEnEn PIET KEIZEr JOHan CrUIJFF MarCO van BaSTEn DannY BlInD JarI lITManEn PaTrICK KlUIvErT WESlEY SnEIJDEr ajax experience ajax experience - 18 - - 19 -
  • 11.
    In the openvista (hall), 2 architectural languages play against one another in a back and forth game: the pure lines of the bleachers versus the sculptural language of the mural. ajax experience ajax experience - 20 - - 21 -
  • 12.
    Step 2: The Ajax aCADEMy Webuild Giants The academy offers a strong contrast to the how the AFC turns young players into world- public space of the hall as it is much darker and famous athletes, as well as the club's training multiple audio and visual elements are integrated. methods based on the TIPS (technique, insight, personality, and speed ) model. In this section of the museum, visitors will learn
  • 13.
    A. THE ''WELL''OF TALENT AJAX IS POWERED BY YOUTH Witness how the renowned football club is also the best school of football, empowering young athletes with superior football skills. The well of talents acts as an introduction to the Ajax philosophy and approach to football using the training program as a way of conveying the essential ideas behind the club’s philosophy. This section is the only pulsed space of the experience. It shows how the athletes flourish through their training in the club; how they have the potential within their reach to become Giants. ajax experience ajax experience - 24 - - 25 -
  • 14.
    b. THE ACADEMY AJAXIS A SCHOOL WHERE FOOTBALL IS TAUGHT AND MASTERED Ajax, as an academy of Giants, is an equilibrium between the people who run it, the training methods and intelligence, and the club as an institution and place where all of these people, ideas and athletes thrive. The space is somewhat a “behind the scenes” of Ajax, explaining the context in which it succeeds in training so many successful players. Between the training methods, the club where success is cultivated, the people are the ones that bring it together and build the culture and the players. The idea is to understand the scope of various elements that act together to build a Giant. ajax experience ajax experience - 26 - - 27 -
  • 15.
    TRAINING mETHoDS PEoPLE CLUB videoloop videoloop videoloop TRAINING mETHoDS PEoPLE CLUB station 1 station 2 station 3 After going through the Well of Talent, These videos are structured around interviews visitors are greeted by three (3) two-minute with individuals active in each of these spheres documentaries, each presenting a strong (from trainers to management to fans). element of the process: 1. The People 2. The Club Heritage 3. The Training Methods ajax experience ajax experience - 28 - - 29 -
  • 16.
    2 large showcasesunder the stadium present the club heritage as a society, place and cradle of success with apparel, trophies, and a broad explanation of historical facts tied to the memorabilia. ajax experience ajax experience - 30 - - 31 -
  • 17.
    B A TECHNIQUE INSIGHT C BooTHS INTERACTIVE TABLES SPEED AREA C. THE TrAiNiNg FiELD After understanding the context and how the The training field holds a series of play stations, elements work together to form the academy, each individually exploring the 4 key topics with the visitor explores 275 m 2 of interactive features. use of interactive technology. Similar to drills, the activities are designed with a play & learn T.I.P.S.: HOW TO TRAIN TO BECOME A GIANT approach, where content becomes embedded in the physical experience. This unique training program, developed by Ajax, is key to becoming a Giant. ajax experience ajax experience - 32 - - 33 -
  • 18.
    Playing field 1066mm Touch Screen (Ultra thin bevel) + multi-user interactive Insight basic info + graphics Profile metallic casing observation zone Graphic design on floor PLAyER 1 ComfoRT AREA Graphic design on floor oBSERVATIoN oBSERVATIoN zoNE PLAyER 2 zoNE ComfoRT AREA Insight Insight: decyphering, anticipating, and playing the game. These pods will give insights on different strategies, and can be viewed either solo or with another person. 3 interactive tables are used as displays that hold different insightful analyses on some of the greatest Ajax games. ajax experience ajax experience - 34 - - 35 -
  • 19.
    TIPS 01 RICHTEN OEFENING: RAAK DE TARGETS TIPS OM JEZELF TE VERBETEREN: AIMING 1 De zuiverste pass krijg je door de binnenkant van je voet te gebruiken. Zorg dat een groot deel van je voet de bal raakt. Hierdoor blijft de bal laag bij de grond. 2 Probeer de bal in het midden, in het ‘hart’ te raken. Waar je de bal raakt bepaalt de richting van de bal. Als je de onderkant van de bal raakt, gaat de bal omhoog. Als je de bal in het TIPS 02 'T' FOR TECHNIQUE 01 midden raakt, blijft de bal laag bij de grond. RICHTEN OEFENING: RAAK DEde bal’. De positie is van invloed op de richting van de bal. Als je over 3 Houd je lichaam ‘boven TARGETS de bal heen leunt, zal de bal laag bij de grond blijven. Als je naar achteren leunt, zal de bal TIPS OM omhoog gaan. JEZELF TE VERBETEREN: TECHNIEK in het voetbal is de mate waarin een speler zowel zijn lichaam In football, TECHNIQUE refers to coordination between the body and the ball. AIMING 1 De zuiverste pass krijg je door de binnenkant van je voet te gebruiken. Zorg dat een groot 4 De positie van raakt. Hierdoor blijft belangrijk. Voor een zuivere pass ga je met de voet van je deel van je voet de bal je standbeen is de bal laag bij de grond. als de bal kan coördineren, en de combinatie tussen die twee. Het is het It is a player's ability to perform specific movements in a smooth and efficient standbeen vlak naast de bal staan en wel zó, dat je tenen wijzen in de 'pass-richting'. vermogen om bepaalde bewegingen gecoördineerd en effectief uit te voeren. motion. 2 Probeer de bal in het midden, in het ‘hart’ te raken. Waar je de bal raakt bepaalt de richting Techniek of voetbalvaardigheden ontwikkel je door veel te oefenen en door van de bal. Als je de onderkant van de bal raakt, gaat de bal omhoog. Als je de bal in het 'T' FOR TECHNIQUE goed te kijken naar anderen. Door veel te trainen en te herhalen ontwikkel je Football skills can be developed through repetition and observation. With midden raakt, blijft de bal laag bij de grond. je techniek op een natuurlijke manier. Daarnaast is het belangrijk goed naar regular training and practice of a specific movement or technique, a player 3 EXERCISE: HITDe positie isTARGETS van de bal. Als je over Houd je lichaam ‘boven de bal’. THE van invloed op de richting de techniek van goede spelers te kijken en hiervan te leren voor je eigen can build confidence and the targeted movement can become natural. The act de bal heen leunt, zal de bal laag bij de grond blijven. Als je naar achteren leunt, zal de bal spel. Een goede techniek vormt de basis voor alle denkbare acties, van een of observing other players' skills can help you to better your own technique. omhoog gaan. TIPS TO IMPROVE YOUR SKILLS: dribbel tot het geven van 'tikkie breed' en van een balaanname tot een pass is de mate waarin een speler zowel zijn lichaamall conceivable actions, from dribbling TECHNIEK in het voetbal A good technique forms the basis for In football, TECHNIQUE refers to coordination between the body and the ball. 4 De positie van je standbeen is belangrijk. Voor een zuivere pass ga je met de voet van je 'over de hele'. to playing the ball wide, and from receiving the ball to passing a long ball. movements in a smooth and efficient als de bal kan coördineren, en de combinatie tussen die twee. Het is het It is a player's ability to perform specific 1standbeen vlak naast de bal staan en for greater precision. in de 'pass-richting'. Use the inside of your foot wel zó, dat je tenen wijzen vermogen om bepaalde bewegingen gecoördineerd en effectief uit te voeren. motion. Techniek of voetbalvaardigheden ontwikkel je door veel te oefenen en door goed te kijken naar anderen. Door veel te trainen en te herhalen ontwikkel je Football skills can be developed through repetition and observation. With 2 Try to connect with the ball in the centre, in the 'heart'. Your point of contact with the ball will je techniek op een natuurlijke manier. Daarnaast is het belangrijk goed naar regular training and practice of a specific movement or technique, a player EXERCISE: HITdirection of the ball. If you connect with the bottom of the ball, the ball will go determine the THE TARGETS de techniek van goede spelers te kijken en hiervan te leren voor je eigen can build confidence and the targeted movement can become natural. The act upwards. If you connect with the ball at its centre, the ball will stay low to the ground. spel. Een goede techniek vormt de basis voor alle denkbare acties, van een of observing other players' skills can help you to better your own technique. TIPS TO IMPROVE YOUR SKILLS: dribbel tot het geven van 'tikkie breed' en van een balaanname tot een pass A good technique forms the basis for all conceivable actions, from dribbling 'over de hele'. to playing the ball wide, and from receiving the ball to passing a long ball. 1 3 Your body your foot for greater precision. the ball’s direction. If you lean over the ball, the ball will Use the inside of position will also influence stay low to the ground. If you lean backwards when you kick, you will force the ball upwards. 01 02 2 Try to connect with the ball in the centre, in the 'heart'. Your point of contact with the ball will 4 The position of your ball. If you connect with the bottom of the ball, the ball pass, plant the foot of your determine the direction of the standing leg is important. For an accurate will go upwards. If you connect with the ball at its centre, the ball will stay low to the ground. RICHTEN standing leg just beside the ball with your toes pointing in the direction of the pass. TIMING OEFENING: RAAK DE TARGETS 3 OEFENING: TIME ball’s direction. If you lean over the ball,PASS NAAR JE MEDESPELER Your body position will also influence the EEN GERICHTE the ball will stay low to the ground. If you lean backwards when you kick, you will force the ball upwards. TIPS OM JEZELF TE VERBETEREN: 4 TIPS position of your standing leg is important. For an accurate pass, plant the foot of your The OM JEZELF TE VERBETEREN: AIMING TIMING standing leg just beside the ball with your toes pointing in the direction of the pass. 1 De zuiverste pass krijg je door de binnenkant van je voet te gebruiken. Zorg dat een groot 1 De zuiverste pass krijg je door de binnenkant van je voet te gebruiken. Wil je een pass geven deel van je voet de bal raakt. Hierdoor blijft de bal laag bij de grond. over een grotere afstand? Raak de bal dan met de zijkant van je voet in het midden, geef de bal voldoende snelheid mee en wijs de bal met de voet na. 2 Probeer de bal in het midden, in het ‘hart’ te raken. Waar je de bal raakt bepaalt de richting van de bal. Als je de onderkant van de bal raakt, gaat de bal omhoog. Als je de bal in het 2 Waar je de bal raakt bepaalt de richting van de bal. Als je de onderkant van de bal raakt, zal TIPS 01 02 03 midden raakt, blijft de bal laag bij de grond. hij omhoog gaan. Als je de bal in het midden raakt, zal hij laag bij de grond blijven. RICHTEN TIMING 3 Houd je lichaam ‘boven de bal’. De positie is van OEFENING: RAAK de bal. Als je over invloed op de richting van DE TARGETS OEFENING: TIMElichaamGERICHTE PASS richting van de bal. Als je over de bal heen 3 De positie van je EEN is ook van invloed op de NAAR JE MEDESPELER de bal heen leunt, zal de bal laag bij de grond blijven. Als je naar achteren leunt, zal de bal leunt, zal de bal laag bij de grond blijven. Als je naar achteren leunt, zal de bal omhoog gaan. omhoog gaan. TIPS OM JEZELF TE VERBETEREN: TIPS OM JEZELF TE VERBETEREN: 4 TIMING De positie van je standbeen is belangrijk. Blijf goed in evenwicht, zet je standbeen naast de AIMING ll. 4 1 De zuiverste pass je met de voet van je De positie van je standbeen is belangrijk. Voor een zuivere pass gakrijg je door de binnenkant van je voet te gebruiken. Zorg dat een groot 1 De zuiverste pass krijg je door de binnenkant van je voet te gebruiken. Wil je een pass geven bal, houd je lichaam boven de bal en zwaai je voet naar achteren. Richt daarbij je tenen naar deel van je voet de bal raakt. Hierdoor blijft de bal laag bij de grond. over een grotere afstand? Raak de bal dan met de zijkant van je voet in het midden, geef de ent standbeen vlak naast de bal staan en wel zó, dat je tenen wijzen in de 'pass-richting'. bal voldoende snelheid mee en wijs de balvoorde voet na. de grond zodat je wreef goed met de bal komt. 2 Probeer de bal in het midden, in het ‘hart’ te raken. Waar je de bal raakt bepaalt de richting van de bal. Als je de onderkant van de bal raakt, gaat de bal omhoog. Als je de bal in het 2 Waar je de bal raakt bepaalt de richting van de bal. Als je de onderkant van de bal raakt, zal OR TECHNIQUE midden raakt, blijft de bal laag bij de grond. hij omhoog gaan. Als je de bal in het midden raakt, zal hij laag bij de grond blijven. EXERCISE: HIT THE TARGETS 3 Houd je lichaam ‘boven de bal’. De positie is van invloed op de richting van de bal. Als je over 3 EXERCISE: TIME invloed op de richting van dePASSover de bal heen TEAMMATE De positie van je lichaam is ook van A CAREFUL bal. Als je TO YOUR act de bal heen leunt, zal de bal laag bij de grond blijven. Als je naar achteren leunt, zal de bal leunt, zal de bal laag bij de grond blijven. Als je naar achteren leunt, zal de bal omhoog gaan. . TIPS TO IMPROVE YOUR SKILLS: omhoog gaan. TIPS TO IMPROVE YOUR SKILLS: gzowel zijn lichaam 4 De positie van je standbeen is belangrijk. Blijf goed in evenwicht, zet je standbeen naast de In football, TECHNIQUE refers to coordination between the body and the ball. 4 De positie van je standbeen is belangrijk. Voor een zuivere pass ga je met de voet van je bal, houd je lichaam boven de bal en zwaai je voet naar achteren. Richt daarbij je tenen naar e twee. Het is het It is a player's ability to perform specific movements in a smooth and efficient 1 Use the inside of your foot for greater precision. standbeen vlak naast de bal staan en wel zó, dat je tenen wijzen in de 'pass-richting'. 1 grond zodatinside of your foot bal komt. aim. de Use the je wreef goed voor de for better effectief uit te voeren. motion. l te oefenen en door herhalen ontwikkel je Football skills can be developed through repetition and observation. With 2 Try to connect with the ball in the centre, in the 'heart'. Your point of contact with the ball will 2 Where you make contact with the ball determines the direction it goes in. If you kick underneath t belangrijk goed naar regular training and practice of a specific movement or technique, a player determine the direction of the ball. If you connect with the bottom ofHIT THE TARGETS EXERCISE: the ball, the ball will go EXERCISE: it will goA CAREFUL PASS TO YOUR TEAMMATE ground. the ball, TIME upward. If you kick the middle of the ball, it will stay on the eren voor je eigen can build confidence and the targeted movement can become natural. The act upwards. If you connect with the ball at its centre, the ball will stay low to the ground. kbare acties, van een of observing other players' skills can help you to better your own technique. TIPS3 IMPROVE YOUR SKILLS: TO Your body position TIPS TO IMPROVE YOUR SKILLS: also has an effect on whether the ball stays low or goes into the air. If you bend anname tot een pass A good technique forms the basis for all conceivable actions, from dribbling to playing the ball wide, and from receiving the ball to passing a long ball. 3 Your body position will also influence the ball’s direction. Ifthe inside of overfoot for greater precision. 1 Use you lean your the ball, the ball will 1 over the ball, the ball will stay down to the ground. If you lean backwards you will force the ball to Use the inside of your foot for better aim. stay low to the ground. If you lean backwards when you kick, you will force the ball upwards. go up. SCALE : 50% 2 Try to connect with the ball in the centre, in the 'heart'. Your point of contact with the ball will 2 Where you make contact with the ball determines the direction it goes in. If you kick underneath 4 The position of your standing leg is important. For an accurate pass, plant the ball. If you connect with the bottom of the ball, the ball will go determine the direction of the foot of your 4 ball, itposition of your standing leg is the ball, it willKeep your balance. Plant your standing leg next to the The will go upward. If you kick the middle of important. stay on the ground. upwards. If you connect with the ball at its centre, the ball will stay low to the ground. standing leg just beside the ball with your toes pointing in the direction of the pass. 3 Yourthe ball, keep youran effect on whetherball stays low or goes into the air. If you bend Point body position also has body above the ball and swing your foot backwards. your toes towards 02 03 3 over theball, the ball will stay down to the ground. If you lean backwards you willthe ball.ball to the ground, allowing your instep to make good contact with force the ALE : 50% Your body position will also influence the ball’s direction. If you lean over the ball, the ball will stay low to the ground. If you lean backwards when you kick, you will force the ball upwards. go up. TIMING KRACHT OEFENING: TIME EEN GERICHTE PASS The position justyour standing legwithimportant. pointingaccuratedirection of the pass. of your 4 NAAR JE MEDESPELER pass, plant the foot standing leg of beside the ball is your toes For an in the 4 OEFENING: AFWERKENbalance. Plant youryour toes towards to The position of your standing leg is important. Keep your OP DE GOAL,next the ball, keep your body above the ball and swing your foot backwards. Point standing leg TRAP DE BAL ZO HARD ALS JE KUNT the ground, allowing your instep to make good contact with the ball. TIPS OM JEZELF TE VERBETEREN: TIPS OM JEZELF TE VERBETEREN: TIMING FORCE 1 De zuiverste pass krijg je door de binnenkant van je voet te gebruiken. Wil je een pass geven 1 Gebruik de wreef van je voet voor meer controle. over een grotere afstand? Raak de bal dan met de zijkant van je voet in het midden, geef de 02 03 bal voldoende snelheid mee en wijs de bal met de voet na. 2 Schiet overtuigend, letterlijk recht op het doel af en met flinke snelheid. TIMING KRACHT RAAK DE TARGETS 2 Waar je de bal raakt bepaalt de richting van de bal. Als je de onderkant van deEEN GERICHTE OEFENING: TIME bal raakt, zal PASS NAAR JE MEDESPELER 3 Wijs elk schot na door met je voet de baan van de bal te volgen. OEFENING: AFWERKEN OP DE GOAL, TRAP DE BAL ZO HARD ALS JE KUNT hij omhoog gaan. Als je de bal in het midden raakt, zal hij laag bij de grond blijven. ERBETEREN: TIPS OM JEZELF TE VERBETEREN: 4 De positie van je standbeen is belangrijk. Als je ver van de bal staat, zul je je been moeten TIPS OM JEZELF TE VERBETEREN: 3 De positie van je lichaam is ook van invloed op de richting van de bal. Als je over de bal heen FORCE strekken waardoor je precisie verliest. Als je standbeen voorbij de bal staat, zal het ook TIMING krijg je door de binnenkant van je voet te gebruiken. Zorg dat een groot leunt, zal de bal laag bij de grond blijven. Als je naar achteren leunt, zal de je door de binnenkant van je voet te gebruiken. Wil je een pass geven 1 De zuiverste pass krijg bal omhoog gaan. 1 Gebruik de wreef van jebal te richten. Zorg dus moeilijk zijn de voet voor meer controle. dat je je standbeen altijd naast de bal zet, dan kun je e bal raakt. Hierdoor blijft de bal laag bij de grond. over een grotere afstand? Raak de bal dan met de zijkant van je voet in het midden, geef de beter richten en dus scoren. bal voldoende snelheid mee en wijs de bal met de voet na. 2 Schiet overtuigend, letterlijk recht op het doel af en met flinke snelheid. het midden, in het ‘hart’ te raken. Waar je de bal raakt bepaalt de richting 4 De positie van je standbeen is belangrijk. Blijf goed in evenwicht, zet je standbeen naast de de onderkant van de bal raakt, gaat de bal omhoog. Als je de bal in het bal, houd je lichaam boven de bal en zwaai je voet naar achteren. bal raakt bepaalt je tenen naar bal. Als je de onderkant van de bal raakt, zal 2 Waar je de Richt daarbij de richting van de 3 Wijs elk schot na door met je voet de baan van de bal te volgen. ft de bal laag bij de grond. hij omhoog gaan. Als je de bal in het midden raakt, zal hij laag bij de grond blijven. boven de bal’. De positie is van invloed op de richting van de bal. Als je over de grond zodat je wreef goed voor de bal komt. 3 De positie van je lichaam is ook van invloed op de richting van de bal. Als je over de bal heen 4 EXERCISE: SHOOTINGver vanvoorbij staat,GOAL AS HARD AS YOU CAN De positie van je standbeen is belangrijk. Als je AT de bal strekken waardoor je precisie verliest. Als je standbeen THEbalzul je jezal hetmoeten de staat, been ook zal de bal laag bij de grond blijven. Als je naar achteren leunt, zal de bal leunt, zal de bal laag bij de grond blijven. Als je naar achteren leunt, zal de bal omhoog gaan. moeilijk zijn de bal te richten. Zorg dus dat je je standbeen altijd naast de bal zet, dan kun je beter richten en dus scoren. TIPS TO IMPROVE YOUR SKILLS: EXERCISE: TIME A CAREFUL PASSDe positie van je standbeen is belangrijk. Blijf goed in evenwicht, zet je standbeen naast de 4 TO YOUR TEAMMATE Technique Booths standbeen is belangrijk. Voor een zuivere pass ga je met de voet van je bal, houd je lichaam boven de bal en zwaai je voet naar achteren. Richt daarbij je tenen naar 1 Use the top of your foot for greater control over the ball. aast de bal staan en wel zó, dat je tenen wijzen in de 'pass-richting'. TIPS TO IMPROVE YOUR SKILLS: de grond zodat je wreef goed voor de bal komt. EXERCISE: SHOOTING AT THE GOAL AS HARD AS YOU CAN 2 Shoot with conviction. Aim straight at the goal and with power. HIT THE TARGETS 1 Use the inside of your foot for better aim. EXERCISE: TIME A CAREFUL PASS TO YOUR TEAMMATE TIPS TO IMPROVE YOUR SKILLS: 1 3Use Point at your foot for greater control over the ball. the ball with your foot. the top of each shot by following the path of R SKILLS: 2 Where you make contact with the ball determines the direction it goes in. If you kick underneath TIPS TO IMPROVE YOUR SKILLS: 2 4Shoot withposition of your standinggoal andimportant. If you’re too far from the ball, you will have to The conviction. Aim straight at the leg is with power. our foot for greater precision. Technique: mastering the moves is done by breaking them up into ball, it will go upward. Ifis displayedof in ball,Usewill insideonyour foot for better aim. the Technique you kick the middle the 13 it the stay of the ground. booths with distinctive 3 Point at each shot by following the path of the ball on your foot. This is also true if you're too far past the ball. stretch – this has a negative impact with your aim. smaller exercises (drills), which are repeated until perfection is body position also has an effect on whether the ball stays lowin goes intowith the ball you bend the direction it goes in. If you kick underneath the ball in the centre, in the 'heart'. Your point of contact with the ball will 3 Your strategies. The booths are sealed you or temperedIf glass to 2 Where make contact the air. determines Try to stay right next to the ball constantly. This will allow you to aim the ball where you want, ction of the ball. If you connect with the bottom of the ball, the ball will go over the ball, the ball will stay down to the ground. If you lean backwardsupward. If you kickthe middle of the ball, it will stay on the ground. the ball, it will go the 4 The when you want. position of your standing leg is important. If you’re too far from the ball, you will have to reached. nnect with the ball at its centre, the ball will stay low to the ground. go up. minimize the sound of the ball. In front you will force booths is of these ball to stretch – this has a negative impact on your aim. This is also true if you're too far past the ball. 3 Your body position also has an effect on whether ball stays low or goes into the air. If you bend Try to stay right next to the ball constantly. This will allow you to aim the ball where you want, will also influence the ball’s direction. If you lean over the ball, the ball will a big flat panel with integrated the ball, the ball will stay down to thevideos lean backwards you will force the ball to over screens showing ground. If you when you want. 4 The position of your standing leg is important. Keep your balance. Plant your standing leg next to und. If you lean backwards when you kick, you will force the ball upwards. of the different techniques beinggorepresented. up. the ball, keep your body above the ball and swing your foot backwards. Point your toes towards ur standing leg is important. For an accurate pass, plant the foot of your 4 The position of your standing leg is important. Keep your balance. Plant your standing leg next to eside the ball with your toes pointing in the direction of the pass. the ground, allowing your instep to make good contact withthe ball, keep your body above the ball and swing your foot backwards. Point your toes towards the ball. the ground, allowing your instep to make good contact with the ball. ajax experience ajax experience - 36 - - 37 -
  • 20.
    TIPS 01 TARGETS OEFENING: DRIBBEL ZO SNEL MOGELIJK MET DE BAL VAN TARGET NAAR TARGET TARGETS TIPS OM JEZELF TE VERBETEREN: 1 Houd voor optimale controle contact met de bal wanneer je een korte afstand dribbelt of wanneer je gaat kappen en draaien. TIPS 01 TARGETS 2 Gebruik je wreef en de binnen- en buitenkant van je voet tijdens het dribbelen. OEFENING: DRIBBEL ZO SNEL MOGELIJK MET 'S' FOR SPEED DE 3 Houd je gewicht op het voorste gedeelte van je voeten. Zo sta je op je ‘voorvoeten’; BAL VAN TARGET NAAR TARGET als lichtvoetige speler ben je wendbaarder en draai je sneller. TARGETS TIPS OM JEZELF TE VERBETEREN: 4 Als je door je knieën gaat, is je lichaamszwaartepunt dichter bij de grond en de bal. 1 Houd Dit geeft je controle contact met de bal wanneer je een wendbaarheid. voor optimale een betere controle en een betere korte afstand dribbelt of wanneer je gaat kappen en draaien. SNELHEID is het vermogen van een speler om bewegingen in een zo kort SPEED is a player’s ability to perform movements as fast as possible. As football mogelijke tijd uit te voeren. Voetbal is een ‘explosieve’ sport waarbij je veel te is an explosive sport, it involves a great deal of sudden changes and short sprints 2 Gebruik je wreef en de binnen- en buitenkant van je voet tijdens het dribbelen. 'S' FOR SPEED maken hebt met directe richtingsveranderingen en korte sprintjes met snelle that require quick start and stop actions. There are several types of speed, start-stop acties. Er zijn verschillende soorten snelheid, die je ieder op een each requiring a different training approach. 3 EXERCISE: DRIBBLEdraai je sneller.je op je ‘voorvoeten’; FROM Houd je gewicht op het voorste gedeelte van je voeten. Zo sta THE BALL als lichtvoetige speler ben je wendbaarder en WITH andere manier kunt trainen. 4 TARGET TO is je lichaamszwaartepunt dichter bij de ASen de bal. Als je door je knieën gaat, TARGET AS FAST grond POSSIBLE Starting speed is an athlete’s ability to go from a non-moving state to 1 Dit geeft je een betere controle en een betere wendbaarheid. 1 Startsnelheid is het vermogen om vanuit stilstand explosief in beweging a moving state. SNELHEID is het vermogen van een speler om bewegingen in een zo kort SPEED is a player’s ability to perform movements as fast as possible. As football te komen. mogelijke tijd uit te voeren. Voetbal is een ‘explosieve’ sport waarbij je veel te is an explosive sport, it involves a great deal of sudden changes and short sprints TIPS TO IMPROVE YOUR SKILLS: maken hebt met directe richtingsveranderingen en korte sprintjes met ability to increase speed while and stop actions. There are several types of speed, 2 Acceleration is an athlete’s snelle that require quick start moving. start-stop acties. Er zijn verschillende soorten snelheid, die je ieder op een each requiring a different training approach. EXERCISE: DRIBBLE WITH THE contact with the ball when you’re dribbling over 1 For optimal control, you need to keep BALL FROM 2 Acceleratie is het vermogen om te versnellen vanuit stilstand of vanuit trainen. andere manier kunt Maneuverability describes both the qualityStarting speed is an athlete’s ability to go from a non-moving state to TARGET TOdistance or when you need to make quick turns. a short TARGET AS FAST AS POSSIBLE een beweging. 3 1 and control of the movements 1 Startsnelheid is het vermogen om vanuit stilstand achieve in beweging an athlete can explosief and the speed at which an athlete can change a moving state. 2 Use the instep and TIPS TO IMPROVE YOUR SKILLS: both the inside and outside of your foot when dribbling. te komen. 3 Wendbaarheid staat voor de kwaliteit en de controle van de bewegingen direction. 2 Acceleration is an athlete’s ability to increase speed while moving. die je kunt leveren en de snelheid waarmee je van richting kunt 2 Acceleratie is het vermogen om te versnellen vanuit stilstand of vanuit 1 For optimal control, you need to keep contact withon the frontyou’re dribbling over 3 Winning players keep their weight the ball when of their feet. Being ‘light footed‘ makes a short distance or when you need to make quick turns. veranderen. een beweging. 4 Speed endurance is an athlete’s ability to maintain top levels of speed quality and control of the movements 3 Maneuverability describes both the players flexible and able to make quick turns. while performing repeated athletic actions an athlete becomingand the speed at which an athlete can change without can achieve fatigued. 2 Use the instep and both the inside and outside of your foot when dribbling. 3 Wendbaarheid staat voor de kwaliteit en de controle van de bewegingen direction. 4 When you bend your knees, you’re closer to the ground and to the ball. This will give you 4 Uithoudingsvermogen is het vermogen om gedurende lange tijdkunt leveren en de snelheid waarmee je van richting kunt die je een 3 Winning players keep their weight on the front of their feet. Being ‘light footed‘ makes better control of the ball and more maneuverability. 02 0 lichamelijke inspanning vol te houden. veranderen. 4 Speed endurance is an athlete’s ability to maintain top levels of speed players flexible and able to make quick turns. while performing repeated athletic actions without becoming fatigued. 4 Uithoudingsvermogen is het vermogen om gedurende lange tijd een 4 When you bend your knees, you’re closer to the ground and to the ball. This will give you TEGENSTAND better control of the ball and more maneuverability. OEFENING: DRIBBEL ZO SNEL MOGELIJK VAN TARGET lichamelijke inspanning vol te houden. NAAR TARGET TERWIJL JE DE TEGENSTANDER ONTWIJKT RESISTANCE TIPS OM JE VAARDIGHEDEN TE VERBETEREN: 1 Houd je kin omhoog en kijk goed om je heen. Hoe beter je overzicht, des te beter 02 03 je kunt anticiperen en reageren. TEGENSTAND RO 2 Gebruik je wreef en de binnen- en buitenkant van je voet tijdens het dribbelen. OEFENING: DRIBBEL ZO SNEL MOGELIJK VAN TARGET 3 NAAR TARGEThet voorste gedeelteDE TEGENSTANDER‘voorvoeten’; Houd je gewicht op TERWIJL JE van je voeten. Zo sta je op je ONTWIJKT als lichtvoetige speler ben je wendbaarder en draai je sneller. RESISTANCE PA TIPS OM JE VAARDIGHEDEN TE VERBETEREN: 4 Als je door je knieën gaat, ben je dichter bij de grond en de bal. Dit geeft je meer 1controle kin omhoog en kijk goed om je heen. Hoe beter je overzicht, des te beter Houd je en een betere wendbaarheid. je kunt anticiperen en reageren. 2 Gebruik je wreef en de binnen- en buitenkant van je voet tijdens het dribbelen. EXERCISE:op het voorste gedeelteFROM TARGET TO TARGET AS QUICKLY 3 Houd je gewicht DRIBBLE van je voeten. Zo sta je op je ‘voorvoeten’; als lichtvoetige speler ben je wendbaarder en draai je sneller. AS POSSIBLEgaat, ben je dichterAVOIDING Dit geeft jeOPPONENT WHILE bij de grond en de bal. THE meer SCALE : 50% 4 Als je door je knieën controle en een betere wendbaarheid. ALE : 50% TIPS TO IMPROVE YOUR SKILLS: 1 EXERCISE: up! Look up from the ball, and see what’sTARGETaround you. Keep your chin DRIBBLE FROM TARGET TO happening AS QUICKLY AS POSSIBLE the faster you can anticipate and react. The more you see, WHILE AVOIDING THE OPPONENT 2 Use the instep and both the inside and outside TIPS TO IMPROVE YOUR SKILLS: of your foot when dribbling. 1 Keep your chin up! Look 3 Winning players keep up from the ball,on the front of their feet. Being ‘light footed‘ their weight and see what’s happening around you. The more you see, the faster you can anticipate and react. makes Giants flexible and able to make quick turns. 2 Use the instep and both the inside and outside of your foot when dribbling. 4 When you bend your knees, you’re closer to the ground and to the ball. 3 Winning players keep their weight on the front of their feet. Being ‘light footed‘ This willGiants flexible and able to make quick ball, and more maneuverability. makes give you better control of the turns. 4 When you bend your knees, you’re closer to the ground and to the ball. 02 03 This will give you better control of the ball, and more maneuverability. TEGENSTAND ROUTE OEFENING: DRIBBEL ZO SNEL MOGELIJK VAN TARGET OEFENING: DRIBBEL MET DE BAL ZO SNEL MOGELIJK NAAR TARGET TERWIJL JE DE TEGENSTANDER ONTWIJKT TERWIJL JE DE LIJN VOLGT RESISTANCE PATH TIPS OM JE VAARDIGHEDEN TE VERBETEREN: TIPS OM JEZELF TE VERBETEREN: 02 03 1 Houd je kin omhoog en kijk goed om je heen. Hoe beter je overzicht, des te beter 1 Gebruik de binnenkant van je voet tijdens het dribbelen. Dat geeft je de meeste TEGENSTAND ROUTE je kunt anticiperen en reageren. OEFENING: DRIBBEL ZO SNEL MOGELIJK VAN TARGET OEFENING: DRIBBEL MET DE Het geeft je SNEL MOGELIJK controle over de richting van de bal. BAL ZO ook meer balgevoel, waardoor NAAR TARGET TERWIJL JE DE TEGENSTANDER ONTWIJKT TERWIJL JE DE LIJN VOLGT je sneller kunt reageren. 2 Gebruik je wreef en de binnen- en buitenkant van je voet tijdens het dribbelen. RESISTANCE PATH 2 Gebruik je beste voet om te dribbelen. TIPS OM JE VAARDIGHEDEN TE VERBETEREN: TIPS OM JEZELF TE VERBETEREN: 3 Houd je gewicht op het voorste gedeelte van je voeten. Zo sta je op je ‘voorvoeten’; als lichtvoetige speler ben je wendbaarder en draai je kin omhoog en kijk goed om je heen. Hoe beter je overzicht, des te beter 1 Houd je sneller. 1 3 Gebruik beide voeten om de richting van de bal te controleren. Gebruik de binnenkant van je voet tijdens het dribbelen. Dat geeft je de meeste je kunt anticiperen en reageren. controle over de richting van de bal. Het geeft je ook meer balgevoel, waardoor 4 Als je door je knieën gaat, ben je dichter bij de grond en de bal. Dit geeft je meer je sneller kunt reageren. 2 Gebruik je wreef en de binnen- en buitenkant van je voet tijdens het dribbelen. controle en een betere wendbaarheid. EXERCISE: DRIBBLE THE BALL AS FAST AS POSSIBLE 2 Gebruik je beste voet om te dribbelen. 3 Houd je gewicht op het voorste gedeelte van je voeten. Zo sta je op je ‘voorvoeten’; als lichtvoetige speler ben je wendbaarder en draai je sneller. 3 Gebruik beide voeten om de richting van de bal te controleren. WHILE FOLLOWING THE LINE SCALE : 50% EXERCISE: DRIBBLE FROM 4 Als je door je knieën gaat, ben je dichter bijAS QUICKLY je meer TARGET betere wendbaarheid. de grond en de bal. Dit geeft controle en een TO TARGET AS POSSIBLE WHILE AVOIDING THE OPPONENT EXERCISE: DRIBBLE THE BALL AS FAST AS POSSIBLE TIPS TO IMPROVE YOUR SKILLS: SCALE : 50% WHILE FOLLOWING THE LINE EXERCISE: DRIBBLE FROM TARGET TO TARGET AS QUICKLY Use the inside of your foot while dribbling to control the ball better. This also gives 1 Speed TIPS TO IMPROVE YOUR SKILLS: AS POSSIBLE WHILE AVOIDING THE OPPONENT TIPS TO IMPROVE YOUR sensitivity you greater SKILLS: over the ball, and allows you to react more quickly. 1 Keep your chin up! Look up from the ball, and see what’s happening around you. 1 Use the inside of your foot while dribbling to control the ball better. This also gives 2 greater sensitivity over the ball, and allows you to react more quickly. Dribble with your best foot. TIPS TO IMPROVE YOUR SKILLS: you The more you see, the faster you can anticipate and react. 1 Keep your chin up! Look up from the ball, and see what’s happening around you. 2 3 Use both feet to control the ball direction. Dribble with your best foot. 2 Use the instep and both the inside and outside of your foot when the faster you can anticipate and react. The more you see, dribbling. 3 Use both feet to control the ball direction. 2 Use the instep and both the inside and outside of your foot when dribbling. 3 Winning players keep their weight on the front of their feet. Being ‘light footed‘ Speed: comes down to pure raw reflexes. to it explaining the Giants flexible and skillmake quick turns. Giants flexible theirable to make quick turns. feet. Being ‘light footed‘ makes different able to strategies and keep 3 Winning players makes and weight on the front of their techniques requiredWhenimprove your you’re closer to the4 groundyou bend your knees, you’re closer to the ground and to the ball. 4 to you bend your knees, game. When and to the ball. The speed area is achieved by the same 3 stations and is This will give you better control of the ball, and more maneuverability. This will give you better control of the ball, and more maneuverability. framed with an arch. Information surfaces are attached ajax experience ajax experience - 38 - - 39 -
  • 21.
    Step 3: The locker room Themost sacred place in the stadium Blood, sweat & tears: Character and dedication The darker side of the exhibit is created by a dark distinguish great players from the merely one-way mirror. ordinary. Looped videos with the coach pronouncing The visitor is in the player’s position, the coach 2 speeches are retroprojected on a mirrored wall. addresses them, confronting them on the scope of challenges they are about to face and the The built environment (diorama) and the coach’s importance of believing in themselves. As most speech (presented behind a one-way glass) propels of Ajax philosophy is verbal in nature and has the visitors into the players’ shoes, giving them passed from coach to athletes over the years by an insightful appreciation of the relationship, the means of speeches and conversations, the and how this ties into the development of an locker room explores this relationship. Architects athlete. recreated fragments of the arena locker room and amplified their presence with a mirror effect in a yin/yang type of space. ajax experience ajax experience - 40 - - 41 -
  • 22.
    ajax experience ajax experience - 42 - - 43 -
  • 23.
    Step 4: The tunnel Action isnow The tunnel is a moment of transition and guiding them to the stadium. The audio track mounting excitement between the locker room amplifies the simulation: a growing hum and the and the stadium. crowd roaring and cheering in the stadium can be heard along with the Ajax club chant, calling It is a darkened passage with a wall treatment of out to the visitor. shadows of players walking alongside the visitor, ajax experience ajax experience - 44 - - 45 -
  • 24.
    ajax experience ajax experience - 46 - - 47 -
  • 25.
    Step 5: The Leaving the tunnel, visitors follow the sound of the This sequence of moments is projected simultaneously crowd and enter the stadium, the largest space yet and on 4 screens, fully immersing the visitor. the climax of the experience. Witness how Ajax – its club, its people, its culture – has achieved world-class The Stadium area is a reference to a real stadium stadium recognition through its players. Through the Giants, with the lower portion accessible for people to sit the AJAX spirit is alive and well in the stadium. The and the higher portion dedicated to the immersive stadium is a grandiose conclusion to the experience. projections. The immersion experience is achieved The synthesis is achieved by a videoportrait of the by a blended large-scale projection. The soundtrack Club under 3 different magnifying glasses: Ajax as a is also amplified by the sense of a larger-than- Witness the Giants team, the 17 Giants and the supporters, all focusing life space. on how they have reached this status of greatness. ajax experience ajax experience - 48 - - 49 -
  • 26.
    Step 6: Ajax around theworld We are Ajax. We, the fans, are Giants. Leaving the stadium, visitors enter a last a tribute to their devotion and loyalty. exhibition experience, before entering the retail space. This section aims to give the opportunity to each fan to participate the House of Ajax in their own The last exhibition space in the Experience way. Meet the fans behind the building of Giants. is totally devoted to and for the fans. The space is a dialogue between Ajax and its supporters, ajax experience ajax experience - 50 - - 51 -
  • 27.
    Step 7: The retail Completing theExperience The retail space is the final stop before leaving The retail area is serviced by the main counter the Experience. The retail displays are that also provides information, ticketing, and designed to follow the same esthetics as the a cashier. The high ceilings of the space are rest of the open hall. It embodies the sculptural also emphasized by high large-scale displays effects created in the open vista with, in that showcase some of the jerseys and balls addition, 3 lines of light conveying the that are sold on the premises. relationship between Ajax and Adidas, one of their main sponsors. ajax experience ajax experience - 52 - - 53 -
  • 28.
    ajax experience ajax experience - 54 - - 55 -
  • 29.
    Plans Summary: Total surface area: 1000 m2 and layout Total experience duration: 60 minutes Visitors in space at a time: 137 How we built it CAPACITy : ExPERIENCE SURfACE AREA VISIToRS IN SPACE AT A TImE ExPERIENCE DURATIoN (mIN) History Hall 148,3 m2 129 Reception 20,4 m2 - The well of talent 47,2 m2 11 5 Giant Academy 118,1 m2 23 10 Training field 275,8 m2 46 20 The locker room 41,3 m2 11 5 The tunnel 13,3 m2 - The stadium 186 m2 34 15 Ajax around the world 50,4 m2 - Be a Giant (retail) 86,3 m2 -
  • 30.
    5 2 1 4 4 3 3 1 Ground floor 5 2 no scale ajax experience ajax experience - 58 - - 59 -
  • 31.
    1 2 3 Ground floor Scale: 1:100 ajax experience ajax experience - 60 - - 61 -
  • 32.
    4 5 Sections Scale: 1:100 ajax experience ajax experience - 62 - - 63 -
  • 33.
    3 1 1 2 2 3 Retail sections no scale ajax experience ajax experience - 64 - - 65 -
  • 34.
    Credits ARCHITECTURAL DESIGN BRANDING AND GRAPHIC DESIGN Sid Lee Architecture Sid Lee Amsterdam 75, Queen Street, Suite 1500, Gerard Doustraat 72-80, 1072VV Montréal (Québec) Amsterdam, Netherlands H3C 2N6 Canada +31 20 66 23 030 514-282-6834 sidlee.com sidleearchitecture.com BUILDERS: PRofESSIoNAL CoNSTRUCTIoN STUDIo INTERACTIVE & mUSEUm ExHIBIT + mULTImEDIA Fiction Factory gsmprjct° 1033 NX Amsterdam 777, de la Commune ouest, suite 200 +31 20 63 52 424 Montréal (Québec) fictionfactory.nl H3C 1Y1 Canada 514-288-4233 PHoToS gsmprjct.com Ewout Huibers +31 62 95 94 778 VIDEo PRoDUCTIoN ewout.tv Jimmy Lee 50 Queen Street, 4th floor Montréal (Québec) H3C 2N5 Canada 514-875-5533 jimmylee.tv ajax experience ajax experience - 66 - - 67 -
  • 35.