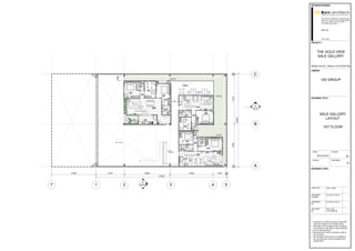
Living room+Dining
AP-LI/DI
21.7 M2
Kitchen
AP-KI
5.4 M2
Laundry
AP-LA
2.3 M2
Bathroom
AP-BE
3.8 M2
Bedroom
AP-BE
12.8 M2
Kidroom
AP-BE
8.6 M2
200 2500 2900 200
8400
100210010010501003100100
8400
200 2800 200 1400 100 3500 200
8400
100340010032002001300100
70001400
2600
1000
1000
F
Corridor
AP-CO
3 M2
1600
2000
1000
1900
350
200200
500
NET AREA
TOTAL GROSS AREA 64.9 m2
TYPE A
59.06 m2
2 BEDROOM APARTMENT FLOOR PLAN _ SCALE 1/50
MẶT BẰNG CĂN HỘ 2 PHÒNG NGỦ _ TỶ LỆ 1/50
1250
ID-100-A
NOTE :
SHOW FLAT LAYOUT
2 BEDROOM (59.6 M2)
MẶT BẰNG CĂN HỘ MẪU
2 PHÒNG NGỦ (59.6 M2)
26.03.2015
02
SC
• Contractor to confirm samples of finish with
client and designer (in a sample board)
• All designs are copyright of Korn Architects
and cannot be used without their permission
• Do not scale drawings
• Measurements must be checked on site by
the contractor.
• All materials and fixtures to be installed as
per manufacturers recommendations and
specifications
Tel: +84 8 3915 3386 | Fax: +84 8 3915 3387
Suite 102 | 1st Floor | Kim Do Office Building
123 Le Loi st | Ben Thanh ward | Dist 1
Ho Chi Minh city | Vietnam
INTERIOR DESIGN :
PROJECT :
OWNER:
DIRECTOR
DESIGNED
BY
CHECKED
BY
STAGE :
REVISION :
DRAWING TITLE :
DRAWING CODE :
AXEL KORN
orn architectsI n s p i r e d d e s i g n f r o m G e r m a n y
THE GOLD VIEW
SALE GALLERY
AXEL KORN
DIRECTOR
NGUYEN VIET
PHUONG
ROLF VAN
VALKENBURG
LE NGOC VAN VYDESIGNED
LEADER
DATE :
SCALE :
VID GROUP
1/50
Living room+Dining
AP-LI/DI
24.9 M2
Laundry
AP-LA
1.6 M2
6900
10500
10010002006000
100
20038001001700
100220010003100100
32003400
100
2900
200
Master bedroom
AP-BE
14.2 M2
1001150100
200 1000
Bathroom
AP-BA
3.8 M2
2000
1400
1600
2000
Corridor
AP-CO
3 M2
Bedroom
AP-BE
9.7 M2
100
Kitchen
AP-KI
6.3 M2
Bathroom
AP-BA
3.2 M2
100100
8400
100
350
3200200
NET AREA
TOTAL GROSS AREA 79.4 m2
TYPE B
72.86 m2
2 BEDROOM APARTMENT FLOOR PLAN _ SCALE 1/50
MẶT BẰNG CĂN HỘ 2 PHÒNG NGỦ _ TỶ LỆ 1/50
300
F
10500
1000
ID-100-B
NOTE :
SHOW FLAT LAYOUT
2 BEDROOM (72.8 M2)
MẶT BẰNG CĂN HỘ MẪU
2 PHÒNG NGỦ (72.8 M2)
26.03.2015
02
SC
• Contractor to confirm samples of finish with
client and designer (in a sample board)
• All designs are copyright of Korn Architects
and cannot be used without their permission
• Do not scale drawings
• Measurements must be checked on site by
the contractor.
• All materials and fixtures to be installed as
per manufacturers recommendations and
specifications
Tel: +84 8 3915 3386 | Fax: +84 8 3915 3387
Suite 102 | 1st Floor | Kim Do Office Building
123 Le Loi st | Ben Thanh ward | Dist 1
Ho Chi Minh city | Vietnam
INTERIOR DESIGN :
PROJECT :
OWNER:
DIRECTOR
DESIGNED
BY
CHECKED
BY
STAGE :
REVISION :
DRAWING TITLE :
DRAWING CODE :
AXEL KORN
orn architectsI n s p i r e d d e s i g n f r o m G e r m a n y
THE GOLD VIEW
SALE GALLERY
AXEL KORN
DIRECTOR
NGUYEN VIET
PHUONG
ROLF VAN
VALKENBURG
LE NGOC VAN VYDESIGNED
LEADER
DATE :
SCALE :
VID GROUP
1/50
NET AREA
TOTAL GROSS AREA 116.5 m2
TYPE D
106.7 m2
3 BEDROOM APARTMENT FLOOR PLAN _ SCALE 1/50
MẶT BẰNG CĂN HỘ 3 PHÒNG NGỦ _ TỶ LỆ 1/50
2000
11200
10500
26001002800
20039001003900
200 4300 100 2000 100
200
200
200
2600100
200
Kitchen
AP-KI
9.3 M2
3300
1000 100
3400100
90013001600600
11200
Laundry
AP-LA
3.1 M2
100
Master bedroom
AP-BE
11.1 M2
100 1800
100
Bathroom
AP-BA
3.3 M2
Bedroom
AP-BE
12 M2
100
Walk-in closet
AP-WA
3.3 M2
200500
2100200
10500
100
Bathroom
AP-BA
3.9 M2
Corridor
AP-CO
1.8 M2
Living room & Dining
AP-LI/DI
38.6 M2
F
600
800600 1000
Kidroom
AP-BE
10.1 M2
2100
1000
12001700
ID-100-D
NOTE :
SHOW FLAT LAYOUT
3 BEDROOM ( 106.7 M2 )
MẶT BẰNG CĂN HỘ MẪU
3 PHÒNG NGỦ ( 106.7 M2 )
26.03.2015
02
SC
• Contractor to confirm samples of finish with
client and designer (in a sample board)
• All designs are copyright of Korn Architects
and cannot be used without their permission
• Do not scale drawings
• Measurements must be checked on site by
the contractor.
• All materials and fixtures to be installed as
per manufacturers recommendations and
specifications
Tel: +84 8 3915 3386 | Fax: +84 8 3915 3387
Suite 102 | 1st Floor | Kim Do Office Building
123 Le Loi st | Ben Thanh ward | Dist 1
Ho Chi Minh city | Vietnam
INTERIOR DESIGN :
PROJECT :
OWNER:
DIRECTOR
DESIGNED
BY
CHECKED
BY
STAGE :
REVISION :
DRAWING TITLE :
DRAWING CODE :
AXEL KORN
orn architectsI n s p i r e d d e s i g n f r o m G e r m a n y
THE GOLD VIEW
SALE GALLERY
AXEL KORN
DIRECTOR
NGUYEN VIET
PHUONG
ROLF VAN
VALKENBURG
LE NGOC VAN VYDESIGNED
LEADER
DATE :
SCALE :
VID GROUP
1/50
I N T E R I O R D E S I G N | A M B I E N C E | M O C K - U P A PA R T M E N T
March 26th , 2015 | REV01
GOLD VIEW SALE GALLERY
y o u n g | f r e s h | s i m p l e | m o d e r n
TYPE A
Bathroom floor
Bedroom floor
Bathroom wall
Balcony floor
Living room
Soft futniture
Color
Décor
GOLD VIEW SALE GALLERY | SHOW FLAT | MOOD BOARD | TYPE A
Décor rug
Décor rug
GOLD VIEW SALE GALLERY | SHOW FLAT | MOOD BOARD | TYPE A | LIVING & KITCHEN
GOLD VIEW SALE GALLERY | SHOW FLAT | MOOD BOARD | TYPE A | BEDROOM
GOLD VIEW SALE GALLERY | SHOW FLAT | MOOD BOARD | TYPE A | BATHROOM
GOLD VIEW SALE GALLERY | SHOW FLAT | MOOD BOARD | TYPE B
c o z y | c o n t e m p o r a r y | t r o p i c a l
TYPE B
Soft furniture
FurnitureGraphic
Bathroom floor
Bathroom wall
Balcony floor
Living room
Furniture
Graphic
Bedroom floor
GOLD VIEW SALE GALLERY | SHOW FLAT | MOOD BOARD | TYPE B | LIVING & KITCHEN
GOLD VIEW SALE GALLERY | SHOW FLAT | MOOD BOARD | TYPE B | BEDROOM
GOLD VIEW SALE GALLERY | SHOW FLAT | MOOD BOARD | TYPE B | BATHROOM
GOLD VIEW SALE GALLERY | SHOW FLAT | MOOD BOARD | TYPE D
s e m i c l a s s i c | e l e g a n c e | l u x u r y
TYPE D
Bathroom floor
Bathroom wall
Balcony floor
Living room
Decor
Furniture
Color
Décor accessories
Decor
Bedroom floor
Rug
GOLD VIEW SALE GALLERY | SHOW FLAT | MOOD BOARD | TYPE D | LIVING & KITCHEN
GOLD VIEW SALE GALLERY | SHOW FLAT | MOOD BOARD | TYPE D | BEDROOM
GOLD VIEW SALE GALLERY | SHOW FLAT | MOOD BOARD | TYPE D | BATHROOM
THANK YOU

Sơ Đồ Căn Hộ Gold View

  • 3.
    Living room+Dining AP-LI/DI 21.7 M2 Kitchen AP-KI 5.4M2 Laundry AP-LA 2.3 M2 Bathroom AP-BE 3.8 M2 Bedroom AP-BE 12.8 M2 Kidroom AP-BE 8.6 M2 200 2500 2900 200 8400 100210010010501003100100 8400 200 2800 200 1400 100 3500 200 8400 100340010032002001300100 70001400 2600 1000 1000 F Corridor AP-CO 3 M2 1600 2000 1000 1900 350 200200 500 NET AREA TOTAL GROSS AREA 64.9 m2 TYPE A 59.06 m2 2 BEDROOM APARTMENT FLOOR PLAN _ SCALE 1/50 MẶT BẰNG CĂN HỘ 2 PHÒNG NGỦ _ TỶ LỆ 1/50 1250 ID-100-A NOTE : SHOW FLAT LAYOUT 2 BEDROOM (59.6 M2) MẶT BẰNG CĂN HỘ MẪU 2 PHÒNG NGỦ (59.6 M2) 26.03.2015 02 SC • Contractor to confirm samples of finish with client and designer (in a sample board) • All designs are copyright of Korn Architects and cannot be used without their permission • Do not scale drawings • Measurements must be checked on site by the contractor. • All materials and fixtures to be installed as per manufacturers recommendations and specifications Tel: +84 8 3915 3386 | Fax: +84 8 3915 3387 Suite 102 | 1st Floor | Kim Do Office Building 123 Le Loi st | Ben Thanh ward | Dist 1 Ho Chi Minh city | Vietnam INTERIOR DESIGN : PROJECT : OWNER: DIRECTOR DESIGNED BY CHECKED BY STAGE : REVISION : DRAWING TITLE : DRAWING CODE : AXEL KORN orn architectsI n s p i r e d d e s i g n f r o m G e r m a n y THE GOLD VIEW SALE GALLERY AXEL KORN DIRECTOR NGUYEN VIET PHUONG ROLF VAN VALKENBURG LE NGOC VAN VYDESIGNED LEADER DATE : SCALE : VID GROUP 1/50
  • 4.
    Living room+Dining AP-LI/DI 24.9 M2 Laundry AP-LA 1.6M2 6900 10500 10010002006000 100 20038001001700 100220010003100100 32003400 100 2900 200 Master bedroom AP-BE 14.2 M2 1001150100 200 1000 Bathroom AP-BA 3.8 M2 2000 1400 1600 2000 Corridor AP-CO 3 M2 Bedroom AP-BE 9.7 M2 100 Kitchen AP-KI 6.3 M2 Bathroom AP-BA 3.2 M2 100100 8400 100 350 3200200 NET AREA TOTAL GROSS AREA 79.4 m2 TYPE B 72.86 m2 2 BEDROOM APARTMENT FLOOR PLAN _ SCALE 1/50 MẶT BẰNG CĂN HỘ 2 PHÒNG NGỦ _ TỶ LỆ 1/50 300 F 10500 1000 ID-100-B NOTE : SHOW FLAT LAYOUT 2 BEDROOM (72.8 M2) MẶT BẰNG CĂN HỘ MẪU 2 PHÒNG NGỦ (72.8 M2) 26.03.2015 02 SC • Contractor to confirm samples of finish with client and designer (in a sample board) • All designs are copyright of Korn Architects and cannot be used without their permission • Do not scale drawings • Measurements must be checked on site by the contractor. • All materials and fixtures to be installed as per manufacturers recommendations and specifications Tel: +84 8 3915 3386 | Fax: +84 8 3915 3387 Suite 102 | 1st Floor | Kim Do Office Building 123 Le Loi st | Ben Thanh ward | Dist 1 Ho Chi Minh city | Vietnam INTERIOR DESIGN : PROJECT : OWNER: DIRECTOR DESIGNED BY CHECKED BY STAGE : REVISION : DRAWING TITLE : DRAWING CODE : AXEL KORN orn architectsI n s p i r e d d e s i g n f r o m G e r m a n y THE GOLD VIEW SALE GALLERY AXEL KORN DIRECTOR NGUYEN VIET PHUONG ROLF VAN VALKENBURG LE NGOC VAN VYDESIGNED LEADER DATE : SCALE : VID GROUP 1/50
  • 5.
    NET AREA TOTAL GROSSAREA 116.5 m2 TYPE D 106.7 m2 3 BEDROOM APARTMENT FLOOR PLAN _ SCALE 1/50 MẶT BẰNG CĂN HỘ 3 PHÒNG NGỦ _ TỶ LỆ 1/50 2000 11200 10500 26001002800 20039001003900 200 4300 100 2000 100 200 200 200 2600100 200 Kitchen AP-KI 9.3 M2 3300 1000 100 3400100 90013001600600 11200 Laundry AP-LA 3.1 M2 100 Master bedroom AP-BE 11.1 M2 100 1800 100 Bathroom AP-BA 3.3 M2 Bedroom AP-BE 12 M2 100 Walk-in closet AP-WA 3.3 M2 200500 2100200 10500 100 Bathroom AP-BA 3.9 M2 Corridor AP-CO 1.8 M2 Living room & Dining AP-LI/DI 38.6 M2 F 600 800600 1000 Kidroom AP-BE 10.1 M2 2100 1000 12001700 ID-100-D NOTE : SHOW FLAT LAYOUT 3 BEDROOM ( 106.7 M2 ) MẶT BẰNG CĂN HỘ MẪU 3 PHÒNG NGỦ ( 106.7 M2 ) 26.03.2015 02 SC • Contractor to confirm samples of finish with client and designer (in a sample board) • All designs are copyright of Korn Architects and cannot be used without their permission • Do not scale drawings • Measurements must be checked on site by the contractor. • All materials and fixtures to be installed as per manufacturers recommendations and specifications Tel: +84 8 3915 3386 | Fax: +84 8 3915 3387 Suite 102 | 1st Floor | Kim Do Office Building 123 Le Loi st | Ben Thanh ward | Dist 1 Ho Chi Minh city | Vietnam INTERIOR DESIGN : PROJECT : OWNER: DIRECTOR DESIGNED BY CHECKED BY STAGE : REVISION : DRAWING TITLE : DRAWING CODE : AXEL KORN orn architectsI n s p i r e d d e s i g n f r o m G e r m a n y THE GOLD VIEW SALE GALLERY AXEL KORN DIRECTOR NGUYEN VIET PHUONG ROLF VAN VALKENBURG LE NGOC VAN VYDESIGNED LEADER DATE : SCALE : VID GROUP 1/50
  • 6.
    I N TE R I O R D E S I G N | A M B I E N C E | M O C K - U P A PA R T M E N T March 26th , 2015 | REV01 GOLD VIEW SALE GALLERY
  • 7.
    y o un g | f r e s h | s i m p l e | m o d e r n TYPE A Bathroom floor Bedroom floor Bathroom wall Balcony floor Living room Soft futniture Color Décor GOLD VIEW SALE GALLERY | SHOW FLAT | MOOD BOARD | TYPE A Décor rug Décor rug
  • 8.
    GOLD VIEW SALEGALLERY | SHOW FLAT | MOOD BOARD | TYPE A | LIVING & KITCHEN
  • 9.
    GOLD VIEW SALEGALLERY | SHOW FLAT | MOOD BOARD | TYPE A | BEDROOM
  • 10.
    GOLD VIEW SALEGALLERY | SHOW FLAT | MOOD BOARD | TYPE A | BATHROOM
  • 11.
    GOLD VIEW SALEGALLERY | SHOW FLAT | MOOD BOARD | TYPE B c o z y | c o n t e m p o r a r y | t r o p i c a l TYPE B Soft furniture FurnitureGraphic Bathroom floor Bathroom wall Balcony floor Living room Furniture Graphic Bedroom floor
  • 12.
    GOLD VIEW SALEGALLERY | SHOW FLAT | MOOD BOARD | TYPE B | LIVING & KITCHEN
  • 13.
    GOLD VIEW SALEGALLERY | SHOW FLAT | MOOD BOARD | TYPE B | BEDROOM
  • 14.
    GOLD VIEW SALEGALLERY | SHOW FLAT | MOOD BOARD | TYPE B | BATHROOM
  • 15.
    GOLD VIEW SALEGALLERY | SHOW FLAT | MOOD BOARD | TYPE D s e m i c l a s s i c | e l e g a n c e | l u x u r y TYPE D Bathroom floor Bathroom wall Balcony floor Living room Decor Furniture Color Décor accessories Decor Bedroom floor Rug
  • 16.
    GOLD VIEW SALEGALLERY | SHOW FLAT | MOOD BOARD | TYPE D | LIVING & KITCHEN
  • 17.
    GOLD VIEW SALEGALLERY | SHOW FLAT | MOOD BOARD | TYPE D | BEDROOM
  • 18.
    GOLD VIEW SALEGALLERY | SHOW FLAT | MOOD BOARD | TYPE D | BATHROOM
  • 19.