Q u i n c e y N i x o n
N e w Y o r k C i t y N e w Y o r k
quincey@quinceynixon.com
P O R T F O L I O
Hospitality + Leisure + Residential
http://www.slideshare.net/quinceynixon
http://www.linkedin.com/in/quinceynixon
07. 08 Oval Fitness – New York City, New York
07. 05 Architectural and Design Consulting, New York, New York
Project architect and designer for new architecture facade, interiors and planning for renovation of existing 5,600 s.f. supermarket
into residential complex fitness amenity space for Peter Cooper Stuyvesant Town. Development of new building facade, interior
mood and finishes. Project completed.
Owner - Tishman Speyer Properties
Operator - Tishman Speyer Properties
Scope - Fitness Center
Juice Bar
Aerobics Room
Yoga Room
Showers
Offices
Services - Interior Design
Interior FF&E
Re-branding and re-position of amenities for New York City’s largest residential development to attract a new upscale market.
Publications and Awards
Q u i n c e y N i x o n
N e w Y o r k C i t y N e w Y o r k
quincey@quinceynixon.com
P O R T F O L I O
Hospitality + Leisure + Residential
http://www.slideshare.net/quinceynixon
http://www.linkedin.com/in/quinceynixon
05. 97
05. 94
University of Connecticut – Stamford, Connecticut
Perkins Eastman Architects, P.C. New York City, New York
Design team member for master plan study, new construction and conversion of existing city center major department store building into
an urban academic center. e m mem e om conce u nnin e i n eve o men ou con uc ion ocumen n e i
o con uc ion mini ion. Project completed.
q. . mi ion c m u ui in ne nc c m u o e e unive i y in o n o n m o . e e i n e m
m e nne ne unive i y ecinc in e o n o n e . e i e inc u e enov ion o v c e e men o e o
u e e m o c emic ui in e i i ion o n exi in in e n ne u n . e ui in o m con i
o i ion in uc ion ce inc u in u i o ium c oom e c in o o ie u io n com u e o o ie i
nci y ce uc cu y n mini ive o ice e e c o o ie i y oun e inin n exe ci e oom
con e ence cen e n u o ce .
e ui in e ve e cen e iece o o in c m u n m e no e e y o m o en u ine i ic .
ee o y c emic concou e e o e ou ee on o e exi in ui in . o min e im y en y o e
unive i y i concou e i c in n en c e u cu in .
e o m o e concou e inc u e e mo e u ic unc ion o e c m u e i y en nce i ove e e in oom oo
ci i ie oo o e e y en nce o e con e ence cen e o en cce com u e o o ie u en e vice unc ion n
e m in ecu i y n in o m ion e .
Owner - University of Connecticut
Operator - University of Connecticut
Scope - Site Design
Building Renovation
Façade Studies
Master Planning
Programming
Parking
Services - Urban Planning
Site Planning
Architecture
Interior Design
Interior FF&E
Programming
Publications and Awards
c i ec u eco c o e
Q u i n c e y N i x o n
N e w Y o r k C i t y N e w Y o r k
quincey@quinceynixon.com
P O R T F O L I O
Hospitality + Leisure + Residential
http://www.slideshare.net/quinceynixon http://www.linkedin.com/in/quinceynixon
2016 Equinox Hotel 35 Hudson Yards – New York, New York
2015 Skidmore Owings and Merrill, New York City, New York
Project architect and project manager for new Equinox Fitness brand hotel.
Role included oversight and management of hotel team as part of overall tower design and construction team.
Client interface and coordination of hotel consultants for interiors and lighting.
Project completed.
Owner - The Related Company
Operator - The Related Company
Scope - Full service luxury hotel (233 guest room and amenities)
Services - Tower Design and Hotel within tower.
Hotel Interior Design and Construction
Interior Master Planning
Hotel occupies 180,000 sq. ft. over floors 14 through 29 of new 80 storey tower consisting of commercial, hotel, restaurants
and residential for The Related Companies. Hotel development includes public spaces ( lobby, restaurant, bar, meeting room
and terrace), 233 guestrooms including suites and extended stay units, hotel administrative offices, kitchens and B.O.H..
Responsibilities included leading the focus on SOM’s hospitality typology projects, schematic and design development of interior
architecture and details with interior design firm Yabu Pulshelberg. As project architect, managed a project team of staff and
consultants from schematic design through design development; coordinating development of scope, interior architecture, details,
MEP coordination, applicable building codes and ADA requirements.
Publications and Awards
ISSUE DATE DESCRIPTION
06.10.19 For Filing And Coordination
1
PROGRESS PLAN COMMON AREA
N
Rev.02
NOT FOR CONSTRUCTION
ISSUE DATE DESCRIPTION
06.10.19 For Filing And Coordination
1
PROGRESS ELE ATION AN UETTE COMMON AREA Rev.01
NOT FOR CONSTRUCTION
2
PROGRESS ELE ATION PANTR COMMON AREA
ISSUE DATE DESCRIPTION
06.10.19 For Filing And Coordination
1
PROGRESS ELE ATION OFFICES COMMON AREA Rev.01
NOT FOR CONSTRUCTION
ISSUE DATE DESCRIPTION
06.10.19 FOR DESIGN ONL
1
PROGRESS ELE ATION IG TA LE PANTR Rev.01
NOT FOR CONSTRUCTION
2
PROGRESS ELE ATION AN UETTE PANTR
ISSUE DATE DESCRIPTION
06.10.19 For Filing And Coordination
1
PROGRESS RCP LO CEILINGS EAMS
N
Rev.0
NOT FOR CONSTRUCTION
,IL- - -- - - -- - - -- - - -- - -19' 7 3/4"· - - - - - - - - - - - - - - - - -,le
I I
r------------+-, I
fl~"1 F"FP'-0 ur .
f'.h c..~/ e1:-tc...,.J<;
or,,~'-' G
~v-(~c$rfvptC)
Ar,..c=.#-rtU1~~r1-"
~S-:4,4.(1
Q u i n c e y N i x o n
N e w Y o r k C i t y N e w Y o r k
qnixon@nyc.rr.com
P O R T F O L I O
Hospitality + Leisure + Residential
http://www.slideshare.net/quinceynixon
http://www.linkedin.com/in/quinceynixon
09. 03 Jacobs Mentre Residence – East Hampton, New York
08. 01 Hottenroth and Joseph Architects, New York, New York
Project architect, co-designer and manager for $11 million, total 16,500 s.f., new construction of 9,200 s.f. main house, 7,300 s.f.
detached cottages, pool house, pool and garage buildings on 8 acres along the shore of Gardiner’s Bay. Role included development
of residential compound site plans, conceptual and schematic development of building massing, elevations, floor plans and interior
architecture. As project architect and designer, mange a project team of two and consultants for 13 months from schematic design
through construction documentation; coordinating development of the site plan, architecture, structure, details, consultants, vendors
and interior FF&E coordination. Project under construction.
Owner - Tick Tock LLC
Operator - Tick Tock LLC
Scope - Main House
Pool and Pool Cottage
5 Residential Cottages
2 Guest Cottages
Storage Cottage
Laundry Cottage
Garage Cottage
Site Amenities
Services - Site Planning
Architecture
Interior Design
Construction Management
Interior FF&E coordination
Publications and Awards
LI ING
DINING
KITCHEN
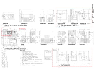
STORAGE POWDER R
PLAN NOTES:
LEGEND
ISSUE DATE DESCRIPTION
24 1 FOR CONSTRUCTION
1
GROUND PLAN PROPOSED NEW
N
R 3
BDR
BDR
STR HALL
LEGEND
PLAN NOTES:
CLOSET
CLOSET
CLOSET
BATHROO
CLOSET
ISSUE DATE DESCRIPTION
14 1 FOR PRICING
1
SECOND PLAN PROPOSED NEW
N
R 2
POWDER ROOM WALLS
BATHROOM
FINISH NOTES:
BATHROOM ENTRY TOILET
POWDER ROOM PLAN
BATHROOM PLAN
BATHROOM SHOWER INTERIOR
BATHROOM VANITY ELEVATION
POWDER ROOM WALLS
POWDER ROOM WALLS
BATHROOM VANITY SECTION BATHROOM VANITY PLAN
TOILET A NOTES:
TOILET ACCESSORIES
BATHROOM SHOWER BATHROOM SHOWER
BATHROOM VANITY ELEVATION
PLUMBING CONNECTION
BATHROOM VANITY SECTION
PLUMBING CONNECTION
BATHROOM VANITY PLAN
PLUMBING CONNECTION
1
31
1
FOR
CONSTRUCTION
ISSUE
DATE
DESCRIPTION
1
POWDER R TILE PLAN AND ELE ATIONS
R
2
BATHROO TILE PLAN AND ELE ATIONS
3
ANITY ILWORK
4
ANITY PLU BING CONNECTION
Q u i n c e y N i x o n
N e w Y o r k C i t y N e w Y o r k
qnixon@nyc.rr.com
P O R T F O L I O
Hospitality + Leisure + Residential
http://www.slideshare.net/quinceynixon
http://www.linkedin.com/in/quinceynixon
09. 03 Hicks Skybox – Dallas, Texas
04. 00 Alexandra Champalimaud and Associates New York City, New York and Montreal, Quebec
Project architect and co-designer for a $1 million, 450 s.f. suite interior in the new American Airlines Arena in Dallas for a private
Forbes listed client. Role included concept and design development, construction documentation, construction administration and
FF&E installation of the interior custom millwork finishes and furnishing. As project architect, managed a project team of two and
consultants for 4 months from conceptual development through construction administration and FF&E installation.
Project Completed.
Owner - Hicks Holding
Operator - Hicks Holding
Scope - Refitting arena-viewing box to clients tailored request.
Millwork
Custom furnishing
Services - Interior Design
Interior Planning
Commissioned by the owner of the Dallas Stars NHL franchise, I led a team that had only 14 weeks till the grand opening day to
design and build what was a raw space in the ongoing and simultaneous construction of the new 21,000 seat American Airlines
Center.
The shape of the room was altered transforming it from the standard arena rectangle into a trapezoid that was narrowest at the
entrance and widest at the stadium seating area overlooking the arena. It is not overly obvious but the funnel shape adds a physical
interior perspective that energizes and gives the room a sense of excitement. Walls and ceiling are a deep glossy black Marimino
plaster raked horizontally to follow the viewing perspective.
At the entry is a built-in cabinet for display of the team’s Stanley Cup trophy. The trapezoidal shape of the room is accentuated by
West African Ambuaya wood panels with the wood grain oriented horizontally to heighten the perspective. The wood panels conceal
an entire cabinet system that houses a state of the art entertainment system including four plasma televisions, general storage, a pop
out full bar and a full dinner service credenza type cabinet that opens out into an elegant and sophisticated display of fine dishes and
utensils.
The floor is finished with a Bill Amber buffalo leather rug mimicking the trapezoid shape of the space and framed in semi-opaque
glass lit from beneath giving the floor an ice rink-like luminescence. Mirroring the leather rug in shape and size is a goatskin
parchment covered light box framed in brushed nickel. The fixture adds a high level of lighting sophistication when dimmed for
arena lights out viewing.
Stadium area seating and tables were up graded with custom glass tops and leather seating using the same Ambuaya wood for seat
backs and undersides.
The Skybox can host up to 50 people.
Publications and Awards
11. 03 Home Entertainment & Design – “Ice Castle”, Hicks Skybox.
10. 02 LD+A, Lighting Design+ Application – “Luxury Light”, Hicks Skybox.
11. 01 D Home & Garden– “Tom Hicks’ Suite Dreams”, Hicks Skybox.
Q u i n c e y N i x o n
N e w Y o r k C i t y N e w Y o r k
qnixon@nyc.rr.com
P O R T F O L I O
Hospitality + Leisure + Residential
http://www.slideshare.net/quinceynixon
http://www.linkedin.com/in/quinceynixon
07. 05 Irving Place Development – New York City, New York
04. 02 Hart Howerton Architects, New York City, New York
Conceptual team member for new 11 story residential façade and lobby design. Project completed through conceptual development studie
Owner - PMJ Properties
Operator - Irving Place Development
Scope - Façade Studies
Lobby Studies
Valet Drop off
Underground Parking
Services - Building façade studies
Interior Architecture
Programming
Publications and Awards
Q u i n c e y N i x o n
N e w Y o r k C i t y N e w Y o r k
quincey@quinceynixon.com
P O R T F O L I O
Hospitality + Leisure + Residential
http://www.slideshare.net/quinceynixon
http://www.linkedin.com/in/quinceynixon
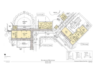
07. 05 Four Season Dorado Resort – San Juan, Puerto Rico
04. 02 Hart Howerton Architects, New York City, New York
Planning and conceptual team member for proposed renovation, re-planning and conversion of the existing Hyatt Dorado Beach Resort
and Golf Club, a beachfront hotel, spa and golf club resort to an upscale boutique resort to be re-branded as the Four Seasons Dorado
Resort. Project completed through conceptual development studies.
Owner - Dorado Resorts
Operator - Four Seasons Hotels
Scope - Master Plan Studies
Site Plan
Renovation
New architecture
Programming
Lobby and Main reception building
Restaurants and Bars
Fitness Center
Board Rooms
Pools, Pool Bar and Grille
Beachfront amenities
200 Guest Rooms
100 Residential units
24 Casitas
12 Villas
Underground parking
Services - Master plan studies
Re-Branding
Programming
Site Planning
New Architecture
Interior Architecture
Interior Design
Publications and Awards
Dorado Beach Hotel Studies 19
Beach Casitas
December 2006
Dorado Beach Hotel Studies 32
Architectural Imagery
October 2006
Core Area Plan
January 2006
Dorado Beach Hotel Studies 4
Dorado Beach Hotel Studies 10
Beach Casita
December 2006
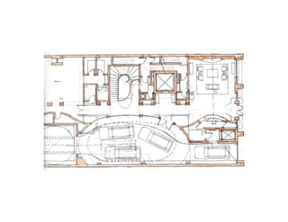
Upper Level
Lower Level
Interior 580 sf
Terrace 365 sf
Interior 565 sf
Terrace 95sf
Interior 865 sf
Terrace 300 sf
Interior 570 sf
Terrace 245sf
1/16"= 1'- 0"
0' 8' 16' 32'
Dorado Beach Hotel Studies 54
Hotel Unit Floor Plans
January 2006
Q u i n c e y N i x o n
N e w Y o r k C i t y N e w Y o r k
qnixon@nyc.rr.com
P O R T F O L I O
Hospitality + Leisure + Residential
http://www.slideshare.net/quinceynixon
http://www.linkedin.com/in/quinceynixon
09. 03 Schnitzer Residence (Otto Residence) – New York City, New York
04. 00 Alexandra Champalimaud and Associates New York City, New York and Montreal, Quebec
Project architect and co-designer for a $12.95 million exterior and interior renovation of an 8,000 s.f., eight story, c.1860 townhouse and
garden for a private client. Role involved development and renovation of exterior facades, garden, building structure and new mechanical
systems. Interior architecture role included coordination of extensive millwork contract, FF&E development and installation. As project
architect, managed a project team of two for 24 months from construction documentation through construction administration. As project
construction manager, oversaw construction administration and coordination with general contractor and consultants while managing vario
interior trades, vendors and millwork fabricators. Project completed.
Owner - Private Client
Operator - Private Client
Scope - Façade Studies
Façade Renovation
Garden Landscape
Roof Garden
Interior gut renovation
Finishes
Furniture
Custom millwork
Custom Lighting fixtures
Select one offs
Services - Façade Architecture
Interior Architecture
Interior Design
Custom Millwork
Interior FF&E
Facing an Edward Durrell Stone landmarked townhouse across the street and neighbor to Phillip Johnsons townhouse on the same
block, the original 8 story townhouse was owned by the film director Otto Preminger and had been remodeled into an early 60’s
modern townhouse on the exterior and interior.
A little more than $1.0 Million of custom millwork was fabricated and installed. Original Azuleja Tile and Stone was purchased from
country homes in Portugal and install at the residence by Portuguese craftsmen hosted by the client for the installation.
Logs of Cerejera Brazilian Cherry were imported, cut into wide boards and custom culled on the clients behalf for installation on
floors and select boards for millwork fabrication and veneers.
Publications and Awards
S chnitzer R esidence
Q u i n c e y N i x o n
N e w Y o r k C i t y N e w Y o r k
qnixon@nyc.rr.com
P O R T F O L I O
Hospitality + Leisure + Residential
http://www.slideshare.net/quinceynixon
http://www.linkedin.com/in/quinceynixon
09. 03 Bavarian Resort and Spa – Taos, New Mexico
04. 00 Alexandra Champalimaud and Associates New York City, New York and Montreal, Quebec
Project architect and designer for a $13 million, new resort hotel for private client. The hotel design program included 32 rooms, two
meeting rooms, a bar, fitness spa and ski deck. Role included development of the site master plan and schematic development for the
hotel’s architecture. As the sole project team member, charretted for one month developing the overall conceptual design.
Project completed.
Owner - The Bavarian Lodge and Restaurant / Blue Ridge Development
Operator - The Bavarian Lodge and Restaurant
Scope - Six full service condominiums (from initial 32 guest room design)
Services - Exterior Design
Interior Design
Interior Master Planning
Located at 10,200 ft at the foot of Kachina Peak (12,500ft) in the heart of the Wheeler Wilderness area, The Bavarian Chalets are
the first of three phases to the planned expansion of the Bavarian Lodge & Restaurant. The firm was commissioned by Blue Ridge
Development to create a contemporary residential design, sensitive to its surroundings and recalling both the mining style cabins
that once were common in the valley and the Bavarian influences of the existing adjacent Bavarian Lodge.
Provided exterior direction in close collaboration with SMPC Architects of Santa Fe, NM. The exterior elements include alternating
horizontal and vertically laid ship lap boards, Juliet balconies with Bavarian detailing, rusty tin roofs and heavy entry doors uniquely
painted in burnt umber, black and white. The rusty tin as a defining exterior element is carried throughout the interior on closet and
bar door panels. Each chalet building houses two units with private entries enjoying ski-in and ski-out access with uninterrupted
views of the surrounding mountain range. A carefully preserved wetland abuts the property.
Designed for complete high-alpine comfort, mudrooms anticipate families with children, long hikes into the wilderness, gear and ski
storage. In the mudroom, galvanized steel panels and baseboards are a feature throughout. A refined rusticity permeates the interior
architecture. Supremely functional, each unit includes three bedrooms, three bathrooms and a powder room. Owner's storage is
accommodated discretely under the entry window seat, and generously on the Owner's level the fully divisible third floor suite.
Each unit incorporates locally sourced materials such as dead-standing timbers and locally inspired themes. The feature wall in the
living room is timber framing and a stainless steel firebox claded to all recall the valley's mining tradition. Artwork is comprised of old
Taos ski advertisements and also black and white wilderness photography. Organic textures, forms and materials complete what is a
deeply generous, multi faceted design that redefines contemporary mountain living.
Publications and Awards
Interior Design Magazine Best of The Year Finalist
Nantucket, Massachusetts
Great Point Partners II, LLC
Nantucket, Massachusetts
Great Point Partners II, LLC
QEN Portfolio CV Over All
QEN Portfolio CV Over All
QEN Portfolio CV Over All
QEN Portfolio CV Over All
QEN Portfolio CV Over All
QEN Portfolio CV Over All
QEN Portfolio CV Over All
QEN Portfolio CV Over All
QEN Portfolio CV Over All
QEN Portfolio CV Over All
QEN Portfolio CV Over All
QEN Portfolio CV Over All
QEN Portfolio CV Over All
QEN Portfolio CV Over All
QEN Portfolio CV Over All

QEN Portfolio CV Over All

  • 2.
    Q u in c e y N i x o n N e w Y o r k C i t y N e w Y o r k quincey@quinceynixon.com P O R T F O L I O Hospitality + Leisure + Residential http://www.slideshare.net/quinceynixon http://www.linkedin.com/in/quinceynixon 07. 08 Oval Fitness – New York City, New York 07. 05 Architectural and Design Consulting, New York, New York Project architect and designer for new architecture facade, interiors and planning for renovation of existing 5,600 s.f. supermarket into residential complex fitness amenity space for Peter Cooper Stuyvesant Town. Development of new building facade, interior mood and finishes. Project completed. Owner - Tishman Speyer Properties Operator - Tishman Speyer Properties Scope - Fitness Center Juice Bar Aerobics Room Yoga Room Showers Offices Services - Interior Design Interior FF&E Re-branding and re-position of amenities for New York City’s largest residential development to attract a new upscale market. Publications and Awards
  • 8.
    Q u in c e y N i x o n N e w Y o r k C i t y N e w Y o r k quincey@quinceynixon.com P O R T F O L I O Hospitality + Leisure + Residential http://www.slideshare.net/quinceynixon http://www.linkedin.com/in/quinceynixon 05. 97 05. 94 University of Connecticut – Stamford, Connecticut Perkins Eastman Architects, P.C. New York City, New York Design team member for master plan study, new construction and conversion of existing city center major department store building into an urban academic center. e m mem e om conce u nnin e i n eve o men ou con uc ion ocumen n e i o con uc ion mini ion. Project completed. q. . mi ion c m u ui in ne nc c m u o e e unive i y in o n o n m o . e e i n e m m e nne ne unive i y ecinc in e o n o n e . e i e inc u e enov ion o v c e e men o e o u e e m o c emic ui in e i i ion o n exi in in e n ne u n . e ui in o m con i o i ion in uc ion ce inc u in u i o ium c oom e c in o o ie u io n com u e o o ie i nci y ce uc cu y n mini ive o ice e e c o o ie i y oun e inin n exe ci e oom con e ence cen e n u o ce . e ui in e ve e cen e iece o o in c m u n m e no e e y o m o en u ine i ic . ee o y c emic concou e e o e ou ee on o e exi in ui in . o min e im y en y o e unive i y i concou e i c in n en c e u cu in . e o m o e concou e inc u e e mo e u ic unc ion o e c m u e i y en nce i ove e e in oom oo ci i ie oo o e e y en nce o e con e ence cen e o en cce com u e o o ie u en e vice unc ion n e m in ecu i y n in o m ion e . Owner - University of Connecticut Operator - University of Connecticut Scope - Site Design Building Renovation Façade Studies Master Planning Programming Parking Services - Urban Planning Site Planning Architecture Interior Design Interior FF&E Programming Publications and Awards c i ec u eco c o e
  • 14.
    Q u in c e y N i x o n N e w Y o r k C i t y N e w Y o r k quincey@quinceynixon.com P O R T F O L I O Hospitality + Leisure + Residential http://www.slideshare.net/quinceynixon http://www.linkedin.com/in/quinceynixon 2016 Equinox Hotel 35 Hudson Yards – New York, New York 2015 Skidmore Owings and Merrill, New York City, New York Project architect and project manager for new Equinox Fitness brand hotel. Role included oversight and management of hotel team as part of overall tower design and construction team. Client interface and coordination of hotel consultants for interiors and lighting. Project completed. Owner - The Related Company Operator - The Related Company Scope - Full service luxury hotel (233 guest room and amenities) Services - Tower Design and Hotel within tower. Hotel Interior Design and Construction Interior Master Planning Hotel occupies 180,000 sq. ft. over floors 14 through 29 of new 80 storey tower consisting of commercial, hotel, restaurants and residential for The Related Companies. Hotel development includes public spaces ( lobby, restaurant, bar, meeting room and terrace), 233 guestrooms including suites and extended stay units, hotel administrative offices, kitchens and B.O.H.. Responsibilities included leading the focus on SOM’s hospitality typology projects, schematic and design development of interior architecture and details with interior design firm Yabu Pulshelberg. As project architect, managed a project team of staff and consultants from schematic design through design development; coordinating development of scope, interior architecture, details, MEP coordination, applicable building codes and ADA requirements. Publications and Awards
  • 20.
    ISSUE DATE DESCRIPTION 06.10.19For Filing And Coordination 1 PROGRESS PLAN COMMON AREA N Rev.02 NOT FOR CONSTRUCTION
  • 21.
    ISSUE DATE DESCRIPTION 06.10.19For Filing And Coordination 1 PROGRESS ELE ATION AN UETTE COMMON AREA Rev.01 NOT FOR CONSTRUCTION 2 PROGRESS ELE ATION PANTR COMMON AREA ISSUE DATE DESCRIPTION 06.10.19 For Filing And Coordination 1 PROGRESS ELE ATION OFFICES COMMON AREA Rev.01 NOT FOR CONSTRUCTION ISSUE DATE DESCRIPTION 06.10.19 FOR DESIGN ONL 1 PROGRESS ELE ATION IG TA LE PANTR Rev.01 NOT FOR CONSTRUCTION 2 PROGRESS ELE ATION AN UETTE PANTR
  • 22.
    ISSUE DATE DESCRIPTION 06.10.19For Filing And Coordination 1 PROGRESS RCP LO CEILINGS EAMS N Rev.0 NOT FOR CONSTRUCTION
  • 23.
    ,IL- - --- - -- - - -- - - -- - -19' 7 3/4"· - - - - - - - - - - - - - - - - -,le I I r------------+-, I fl~"1 F"FP'-0 ur . f'.h c..~/ e1:-tc...,.J<; or,,~'-' G ~v-(~c$rfvptC) Ar,..c=.#-rtU1~~r1-" ~S-:4,4.(1
  • 42.
    Q u in c e y N i x o n N e w Y o r k C i t y N e w Y o r k qnixon@nyc.rr.com P O R T F O L I O Hospitality + Leisure + Residential http://www.slideshare.net/quinceynixon http://www.linkedin.com/in/quinceynixon 09. 03 Jacobs Mentre Residence – East Hampton, New York 08. 01 Hottenroth and Joseph Architects, New York, New York Project architect, co-designer and manager for $11 million, total 16,500 s.f., new construction of 9,200 s.f. main house, 7,300 s.f. detached cottages, pool house, pool and garage buildings on 8 acres along the shore of Gardiner’s Bay. Role included development of residential compound site plans, conceptual and schematic development of building massing, elevations, floor plans and interior architecture. As project architect and designer, mange a project team of two and consultants for 13 months from schematic design through construction documentation; coordinating development of the site plan, architecture, structure, details, consultants, vendors and interior FF&E coordination. Project under construction. Owner - Tick Tock LLC Operator - Tick Tock LLC Scope - Main House Pool and Pool Cottage 5 Residential Cottages 2 Guest Cottages Storage Cottage Laundry Cottage Garage Cottage Site Amenities Services - Site Planning Architecture Interior Design Construction Management Interior FF&E coordination Publications and Awards
  • 52.
    LI ING DINING KITCHEN STORAGE POWDERR PLAN NOTES: LEGEND ISSUE DATE DESCRIPTION 24 1 FOR CONSTRUCTION 1 GROUND PLAN PROPOSED NEW N R 3
  • 53.
    BDR BDR STR HALL LEGEND PLAN NOTES: CLOSET CLOSET CLOSET BATHROO CLOSET ISSUEDATE DESCRIPTION 14 1 FOR PRICING 1 SECOND PLAN PROPOSED NEW N R 2
  • 54.
    POWDER ROOM WALLS BATHROOM FINISHNOTES: BATHROOM ENTRY TOILET POWDER ROOM PLAN BATHROOM PLAN BATHROOM SHOWER INTERIOR BATHROOM VANITY ELEVATION POWDER ROOM WALLS POWDER ROOM WALLS BATHROOM VANITY SECTION BATHROOM VANITY PLAN TOILET A NOTES: TOILET ACCESSORIES BATHROOM SHOWER BATHROOM SHOWER BATHROOM VANITY ELEVATION PLUMBING CONNECTION BATHROOM VANITY SECTION PLUMBING CONNECTION BATHROOM VANITY PLAN PLUMBING CONNECTION 1 31 1 FOR CONSTRUCTION ISSUE DATE DESCRIPTION 1 POWDER R TILE PLAN AND ELE ATIONS R 2 BATHROO TILE PLAN AND ELE ATIONS 3 ANITY ILWORK 4 ANITY PLU BING CONNECTION
  • 64.
    Q u in c e y N i x o n N e w Y o r k C i t y N e w Y o r k qnixon@nyc.rr.com P O R T F O L I O Hospitality + Leisure + Residential http://www.slideshare.net/quinceynixon http://www.linkedin.com/in/quinceynixon 09. 03 Hicks Skybox – Dallas, Texas 04. 00 Alexandra Champalimaud and Associates New York City, New York and Montreal, Quebec Project architect and co-designer for a $1 million, 450 s.f. suite interior in the new American Airlines Arena in Dallas for a private Forbes listed client. Role included concept and design development, construction documentation, construction administration and FF&E installation of the interior custom millwork finishes and furnishing. As project architect, managed a project team of two and consultants for 4 months from conceptual development through construction administration and FF&E installation. Project Completed. Owner - Hicks Holding Operator - Hicks Holding Scope - Refitting arena-viewing box to clients tailored request. Millwork Custom furnishing Services - Interior Design Interior Planning Commissioned by the owner of the Dallas Stars NHL franchise, I led a team that had only 14 weeks till the grand opening day to design and build what was a raw space in the ongoing and simultaneous construction of the new 21,000 seat American Airlines Center. The shape of the room was altered transforming it from the standard arena rectangle into a trapezoid that was narrowest at the entrance and widest at the stadium seating area overlooking the arena. It is not overly obvious but the funnel shape adds a physical interior perspective that energizes and gives the room a sense of excitement. Walls and ceiling are a deep glossy black Marimino plaster raked horizontally to follow the viewing perspective. At the entry is a built-in cabinet for display of the team’s Stanley Cup trophy. The trapezoidal shape of the room is accentuated by West African Ambuaya wood panels with the wood grain oriented horizontally to heighten the perspective. The wood panels conceal an entire cabinet system that houses a state of the art entertainment system including four plasma televisions, general storage, a pop out full bar and a full dinner service credenza type cabinet that opens out into an elegant and sophisticated display of fine dishes and utensils. The floor is finished with a Bill Amber buffalo leather rug mimicking the trapezoid shape of the space and framed in semi-opaque glass lit from beneath giving the floor an ice rink-like luminescence. Mirroring the leather rug in shape and size is a goatskin parchment covered light box framed in brushed nickel. The fixture adds a high level of lighting sophistication when dimmed for arena lights out viewing. Stadium area seating and tables were up graded with custom glass tops and leather seating using the same Ambuaya wood for seat backs and undersides. The Skybox can host up to 50 people. Publications and Awards 11. 03 Home Entertainment & Design – “Ice Castle”, Hicks Skybox. 10. 02 LD+A, Lighting Design+ Application – “Luxury Light”, Hicks Skybox. 11. 01 D Home & Garden– “Tom Hicks’ Suite Dreams”, Hicks Skybox.
  • 92.
    Q u in c e y N i x o n N e w Y o r k C i t y N e w Y o r k qnixon@nyc.rr.com P O R T F O L I O Hospitality + Leisure + Residential http://www.slideshare.net/quinceynixon http://www.linkedin.com/in/quinceynixon 07. 05 Irving Place Development – New York City, New York 04. 02 Hart Howerton Architects, New York City, New York Conceptual team member for new 11 story residential façade and lobby design. Project completed through conceptual development studie Owner - PMJ Properties Operator - Irving Place Development Scope - Façade Studies Lobby Studies Valet Drop off Underground Parking Services - Building façade studies Interior Architecture Programming Publications and Awards
  • 111.
    Q u in c e y N i x o n N e w Y o r k C i t y N e w Y o r k quincey@quinceynixon.com P O R T F O L I O Hospitality + Leisure + Residential http://www.slideshare.net/quinceynixon http://www.linkedin.com/in/quinceynixon 07. 05 Four Season Dorado Resort – San Juan, Puerto Rico 04. 02 Hart Howerton Architects, New York City, New York Planning and conceptual team member for proposed renovation, re-planning and conversion of the existing Hyatt Dorado Beach Resort and Golf Club, a beachfront hotel, spa and golf club resort to an upscale boutique resort to be re-branded as the Four Seasons Dorado Resort. Project completed through conceptual development studies. Owner - Dorado Resorts Operator - Four Seasons Hotels Scope - Master Plan Studies Site Plan Renovation New architecture Programming Lobby and Main reception building Restaurants and Bars Fitness Center Board Rooms Pools, Pool Bar and Grille Beachfront amenities 200 Guest Rooms 100 Residential units 24 Casitas 12 Villas Underground parking Services - Master plan studies Re-Branding Programming Site Planning New Architecture Interior Architecture Interior Design Publications and Awards
  • 112.
    Dorado Beach HotelStudies 19 Beach Casitas December 2006
  • 113.
    Dorado Beach HotelStudies 32 Architectural Imagery October 2006
  • 114.
    Core Area Plan January2006 Dorado Beach Hotel Studies 4
  • 115.
    Dorado Beach HotelStudies 10 Beach Casita December 2006 Upper Level Lower Level Interior 580 sf Terrace 365 sf Interior 565 sf Terrace 95sf Interior 865 sf Terrace 300 sf Interior 570 sf Terrace 245sf 1/16"= 1'- 0" 0' 8' 16' 32'
  • 116.
    Dorado Beach HotelStudies 54 Hotel Unit Floor Plans January 2006
  • 127.
    Q u in c e y N i x o n N e w Y o r k C i t y N e w Y o r k qnixon@nyc.rr.com P O R T F O L I O Hospitality + Leisure + Residential http://www.slideshare.net/quinceynixon http://www.linkedin.com/in/quinceynixon 09. 03 Schnitzer Residence (Otto Residence) – New York City, New York 04. 00 Alexandra Champalimaud and Associates New York City, New York and Montreal, Quebec Project architect and co-designer for a $12.95 million exterior and interior renovation of an 8,000 s.f., eight story, c.1860 townhouse and garden for a private client. Role involved development and renovation of exterior facades, garden, building structure and new mechanical systems. Interior architecture role included coordination of extensive millwork contract, FF&E development and installation. As project architect, managed a project team of two for 24 months from construction documentation through construction administration. As project construction manager, oversaw construction administration and coordination with general contractor and consultants while managing vario interior trades, vendors and millwork fabricators. Project completed. Owner - Private Client Operator - Private Client Scope - Façade Studies Façade Renovation Garden Landscape Roof Garden Interior gut renovation Finishes Furniture Custom millwork Custom Lighting fixtures Select one offs Services - Façade Architecture Interior Architecture Interior Design Custom Millwork Interior FF&E Facing an Edward Durrell Stone landmarked townhouse across the street and neighbor to Phillip Johnsons townhouse on the same block, the original 8 story townhouse was owned by the film director Otto Preminger and had been remodeled into an early 60’s modern townhouse on the exterior and interior. A little more than $1.0 Million of custom millwork was fabricated and installed. Original Azuleja Tile and Stone was purchased from country homes in Portugal and install at the residence by Portuguese craftsmen hosted by the client for the installation. Logs of Cerejera Brazilian Cherry were imported, cut into wide boards and custom culled on the clients behalf for installation on floors and select boards for millwork fabrication and veneers. Publications and Awards
  • 131.
    S chnitzer Residence
  • 134.
    Q u in c e y N i x o n N e w Y o r k C i t y N e w Y o r k qnixon@nyc.rr.com P O R T F O L I O Hospitality + Leisure + Residential http://www.slideshare.net/quinceynixon http://www.linkedin.com/in/quinceynixon 09. 03 Bavarian Resort and Spa – Taos, New Mexico 04. 00 Alexandra Champalimaud and Associates New York City, New York and Montreal, Quebec Project architect and designer for a $13 million, new resort hotel for private client. The hotel design program included 32 rooms, two meeting rooms, a bar, fitness spa and ski deck. Role included development of the site master plan and schematic development for the hotel’s architecture. As the sole project team member, charretted for one month developing the overall conceptual design. Project completed. Owner - The Bavarian Lodge and Restaurant / Blue Ridge Development Operator - The Bavarian Lodge and Restaurant Scope - Six full service condominiums (from initial 32 guest room design) Services - Exterior Design Interior Design Interior Master Planning Located at 10,200 ft at the foot of Kachina Peak (12,500ft) in the heart of the Wheeler Wilderness area, The Bavarian Chalets are the first of three phases to the planned expansion of the Bavarian Lodge & Restaurant. The firm was commissioned by Blue Ridge Development to create a contemporary residential design, sensitive to its surroundings and recalling both the mining style cabins that once were common in the valley and the Bavarian influences of the existing adjacent Bavarian Lodge. Provided exterior direction in close collaboration with SMPC Architects of Santa Fe, NM. The exterior elements include alternating horizontal and vertically laid ship lap boards, Juliet balconies with Bavarian detailing, rusty tin roofs and heavy entry doors uniquely painted in burnt umber, black and white. The rusty tin as a defining exterior element is carried throughout the interior on closet and bar door panels. Each chalet building houses two units with private entries enjoying ski-in and ski-out access with uninterrupted views of the surrounding mountain range. A carefully preserved wetland abuts the property. Designed for complete high-alpine comfort, mudrooms anticipate families with children, long hikes into the wilderness, gear and ski storage. In the mudroom, galvanized steel panels and baseboards are a feature throughout. A refined rusticity permeates the interior architecture. Supremely functional, each unit includes three bedrooms, three bathrooms and a powder room. Owner's storage is accommodated discretely under the entry window seat, and generously on the Owner's level the fully divisible third floor suite. Each unit incorporates locally sourced materials such as dead-standing timbers and locally inspired themes. The feature wall in the living room is timber framing and a stainless steel firebox claded to all recall the valley's mining tradition. Artwork is comprised of old Taos ski advertisements and also black and white wilderness photography. Organic textures, forms and materials complete what is a deeply generous, multi faceted design that redefines contemporary mountain living. Publications and Awards Interior Design Magazine Best of The Year Finalist
  • 147.
  • 148.