Embed presentation
Download to read offline































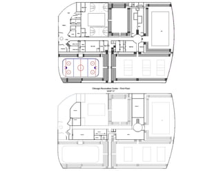
This document lists various architectural projects including a French chateau, high school CAD project, recreation center in Chicago, redevelopment master plan for the Bushnell Center in Hartford including a gallery/theater, movie theater, parking garage, and sustainable studio and skateboard pavilion at the University of Hartford.






























