S a r a
L .
J o b s
“T he details are not the details. T hey make the design.”
-C harles E ames
LUMIERE HOTEL
TRES CHIC RESTAURANT
NATIONAL COMUTER COMPANY
GREENWAY FINANCIAL
PLU8H BOUTIQUE
THE WINE CAR RESTAURANT
C o n t r a c t D e s i g n 1
BARRIER FREE MASTER SUITE
WINDOW TREATMENTS
ANTIQUE BEDROOM
FARNSWORTH HOUSE
SOUTHWEST CASITA
20TH CENTURY GREAT ROOM
BARRIER FREE REMODEL
TRACK 5 LOFTS
R e s i d e n t i a l D e s i g n 4
OBLIQUE LIVING ROOM
EXTERIOR TWO POINT PERSPECTIVE
SECTION CUT
FULL WALL DETAIL
MASTER SUITE DESIGN DRAWINGS
FLOOR PLAN WITH ELEVATIONS
Te c h n i c a l S k i l l s 3
PHOTOGRAPHY
HOTEL LOGO
E-CHIP LOGO
LEAVE BEHIND
M i s c e l l a n e o u s Wo r k s 2
“D esign is directed toward human beings. T o design is to solve
human problems by identifying them and executing the best solution.”
-I van C hermayeff
This section fo cu se s on th e d e si gn
and documenta ti on of va r i ou s
contract space s, i n cl u d i n g of f i ce
spaces, restau r a n ts, bou ti qu e s,
and hotels. My a ppl i e d kn owl e d ge
of space pl a n n i n g, ma te r i a l s,
finishes, furnitu r e a n d l i gh ti n g, i n
addition to con str u cti on d ocu me n ts
and specificati on s d i spl a y s my
ability to crea te e xce pti on a l a n d
functional com me r ci a l spa ce s th a t
will appeal to mu l ti pl e e n d u se r s.
1
C o ntr a ct
D e s i g n
HOTEL BOARD COMPOSITION: REGISTRATION: N.T.S.
Hospitality Design: Lumiere Hotel
Fixtures, Materials, Accessories, Pictorial & Furniture Floor Plan
1ST FLOOR LAYOUT: N.T.S.
Hospitality Design: Lumiere Hotel
Created in CAD
TRANSVERSE SECTION CUT OF FLOORS 1-3: N.T.S
Hospitality Design: Lumiere Hotel
Created in CAD
1
FURNITURE AND FIXTURE SELECTIONS
Hospitality Design: Lumiere Hotel
Layouts created with Adobe InDesign
HOTEL BOARD COMPOSITION: REGISTRATION: N.T.S.
Hospitality Design: Lumiere Hotel
Furniture, Material, Pictorial & Furniture Floor Plan 11
STACKING DIAGRAM: N.T.S.
Hospitality Design: Lumiere Hotel
Created in CAD
HOTEL BOARD COMPOSITION: KING SUITE: N.T.S.
Hospitality Design: Lumiere Hotel (ADA Suite)
Furniture, Fixtures, Materials, Pictorial & Furniture Floor Plan
ADJACENCY & CRITERIA MATRIX
Hospitality Design: Lumiere Hotel (ADA Suite)
Created in Microsoft Excel
COVER SHEET: N.T.S
Hospitality Design: Lumiere Hotel (ADA Suite)
Created in CAD
1
SPECIFICATION SHEET
Hospitality Design: Lumiere Hotel (ADA Suite)
Created in Microsoft Word
CONSTRUCTION PLAN: N.T.S.
Hospitality Design: Lumiere Hotel (ADA Suite)
Created in CAD
ADA COMPLIANT MILLWORK DETAILS: N.T.S.
Hospitality Design: Lumiere Hotel (ADA Suite)
Created in CAD
TAILS: N.T.S.
ELEVATIONS: N.T.S.
Hospitality Design: Lumiere Hotel (ADA Suite)
Created in CAD
1
FURNITURE FLOOR PLAN: N.T.S.
CAD II: Tres Chic Restaurant
Created in ArchiCADBAR AREA RENDERING
CAD II: Tres Chic Restaurant
Created in ArchiCAD
INTERIOR ELEVATION: N.T.S.
CAD II: Tres Chic Restaurant
Created in ArchiCAD
1
1
FURNITURE FLOOR PLAN: N.T.S.
Commercial Space Planning: Greenway Financial Office
Manually Drafted
LONGITUDINAL DESIGN SECTION CUT: N.T.S.
Commercial Space Planning: Greenway Financial Office
Manually Drafted
DIMENSIONED CONSTRUCTION PLAN: N.T.S.
Commercial Space Planning: Greenway Financial Office
Manually Drafted
2ND FLOOR FURNITURE FLOOR PLAN: N.T.S.
Commercial Design: National Computer Company
Created in CAD1
2ND FLOOR REFLECTED CEILING PLAN: N.T.S.
Commercial Design: National Computer Company
Created in CAD
RENDERED 1ST FLOOR PLAN: N.T.S.
Commercial Design: National Computer Company
Rendered in Adobe Photoshop
1
CODE SUMMARY CHECKLIST
Commercial Design: National Computer Company
Created in Microsoft Word
2ND FLOOR POWER/COMMUNICATION PLAN: N.T.S.
Commercial Design: National Computer Company
Created in CAD
PRELIMINARY ELEVATIONS: N.T.S.
Commercial Space Planning: Plush Boutique
Colored Pencil on Graph Paper
RENDERED FLOOR PLAN: N.T.S.
Commercial Space Planning: Plush Boutique
Marker on Vellum
PRELIMINARY ELEVATIONS: N.T.S.
Commercial Space Planning: Plush Boutique
Colored Pencil on Graph Paper
FACADE ELEVATION: N.T.S.
Commercial Space Planning: Plush Boutique
Marker on Vellum1
1
RESTAURANT ENTRY
Senior Design: The Wine Car Restaurant
Created in SketchUp
WINE CELLAR MODEL
Senior Design: The Wine Car Restaurant
Created with Balsa & Bass Wood, Plexiglass & Soft Metal Wire
CONSTRUCTION PLAN: N.T.S.
Senior Design: The Wine Car Restaurant
Created in CAD
“T he whole difference between construction and creation is this;
that a thing constructed can only be loved after it is constructed;
but a thing created is loved before it exists.”
- G .K . C hesterton
The following s e cti on d e mon str a te s
a clear unde r sta n d i n g of th e
various funda me n ta l me th od s
utilized to vis u a l l y commu n i ca te
design in an eff e cti ve ma n n e r . Su ch
techniques incl u d e : r e n d e r i n g of
textiles and m a te r i a l s wi th va r i ou s
media, model con str u cti on , ma n u a l
drafting, perspe cti ve , obl i qu e ,
et cetera. F u r th e r mor e , th i s
section highligh ts kn owl e d ge of
construction co mpon e n ts, f u r n i tu r e
design, and l i gh ti n g a ppl i ca ti on .
2
Te ch ni ca l
S k i l l s
2
PLAN OBLIQUE: N.T.S.
Design Drawing: Living Area
Manually Drafted
TWO POINT PERSPECTIVE: N.T.S.
Design Drawing: Storefront
Manually Drafted
STUDENT LOUNGE: N.T.S.
Lighting: Light Study
Charcoal on Canson Paper
2
FULL BUILDING SECTION: N.T.S.
Building Structures: Structure Components
Manually Drafted
STUDENT LOUNGE ELEVATION: N.T.S.
Lighting: Light Study
Charcoal on Canson Paper
FULL WALL DETAIL: N.T.S.
Building Structures: Structure Components
Manually Drafted
VANITY MODEL
Furniture Design: Vanity
Rendered Balsa Wood
VANITY ELEVATION: N.T.S.
Furniture Design: Vanity
Manually Drafted
SECTION & DETAILS: N.T.S.
Furniture Design: Vanity
Manually Drafted
2
LIVING ROOM
Rendering: Living Room
Colored Pencil on Canson Paper
2
2
EXTERIOR EVALUATION
Commercial Space Planning: La Encantada Observation
Manually Drawn
PLAN OBLIQUE: N.T.S.
Design Drawing: Master Suite
Manually Drafted
FURNITURE FLOOR PLAN: N.T.S.
Design Drawing: Master Suite
Manually Drafted
2
DIMENSIONED FINISH FLOOR PLAN & PROJECTED ELEVATIONS: N.T.S.
Drafting: Final Project
Manually Drafted
MASTER BEDROOM
Rendering: Pictorial & Materials
Marker on Canson Paper
2
ATTIC SPACE
Rendering: Attic Space
Watercolor on Illustration Board
ELEVATION: N.T.S.
Rendering: Attic Space
Watercolor on Illustration Board
ELEVATION: N.T.S.
Rendering: Attic Space
Watercolor on Illustration Board 2
“C reativity is allowing yourself to make mistakes.
D esign is knowing which ones to keep”
-S cott A dams
This section fo cu se s on a va r i e ty
of skills that I h a ve d e mon str a te d
through other a ve n u e s, bu t a r e
none the less a ppl i ca bl e to th e
interior design f i e l d . Su ch ski l l s
include effecti ve commu n i ca ti on ,
research, critica l th i n ki n g, vi su a l
composition, pa ge l a y ou ts, l ogo
design, and gr a ph i c d e si gn .
3
M i s ce l lan e o u s
W o r k s
3
RESTING DOBERMAN
Photography: Manual Photography
Black & White 35mm Film
HOTEL LOGO
Hospitality Design: Lumiere Hotel
Created in InDesign
VANITY
Photography: Manual Photography
Black & White 35mm Film
3
HEAD VASE
Photography: Manual Photography (Soft Focus)
Black & White 35mm Film
COMPUTER RECYCLING COMPANY LOGO
Environmental Design: Business Proposal
Created in InDesign
NOSTALGIA
Photography: Manual Photography
Black & White 35mm Film
SAXOPHONE
Photography: Manual Photography
Black & White 35mm Film
3
COVER PAGE: GALLERY FEATURED
Advanced Presentation: Leave Behind
Created in InDesign
MATERIAL SELECTIONS: GALLERY FEATURED
Advanced Presentation: Leave Behind
Created in InDesign
ACCESSORY SELECTIONS: GALLERY FEATURED
Advanced Presentation: Leave Behind
Created in InDesign
SPACE PLANNING: GALLERY FEATURED
Advanced Presentation: Leave Behind
Created in InDesign & SketchUp
3
DESIGNER INFORMATION: GALLERY FEATURED
Advanced Presentation: Leave Behind
Created in InDesign
FURNITURE SELECTIONS: GALLERY FEATURED
Advanced Presentation: Leave Behind
Created in InDesign
LIGHTING SELECTIONS: GALLERY FEATURED
Advanced Presentation: Leave Behind
Created in InDesign
“D esign is the contrast of the core of limitations therefore there are no
boundaries. I t is simply an interpretation of creativity.”
-J enaiha W oods
Lastly, this secti on con ce n tr a te s
on various sol u ti on s to r e si d e n ti a l
projects. Each p r oje ct i s th e r e su l t of
meeting a speci f i c e n d u se r s n e e d s,
including various d e si gn sty l e s, col or
schemes and p h y si ca l n e e d s, su ch
as barrier free or a gi n g i n pl a ce . I
was able to achi e ve e f f e cti ve r e su l ts
through my appl i ca ti on of e sse n ti a l
design principl e s a n d pr a cti ce s.
4
R e si d e nti a l
D e s i g n
SANTA FE BOARD COMPOSITION: N.T.S.
Design Styles: Southwest Casita
Furniture, Fixtures, Pictorial & Elevations
PRESSED TIN LIGHT FIXTURE
Design Styles: Southwest Casita
Marker & Colored Pencil on Marker Paper
EXTERIOR LIGHT FIXTURE
Design Styles: Southwest Casita
Marker & Colored Pencil on Marker Paper
4
SPANISH MISSION EXTERIOR ELEVATION: N.T.S.
Design Styles: Southwest Casita
Marker & Colored Pencil on Marker Paper
SPANISH MISSION FIREPLACE ELEVATION: N.T.S.
Design Styles: Southwest Casita
Marker & Colored Pencil on Marker Paper
SPANISH MISSION INTERIOR ELEVATION: N.T.S.
Design Styles: Southwest Casita
Marker & Colored Pencil on Marker Paper
SPANISH MISSION ARMOIRE
Design Styles: Southwest Casita
Marker & Colored Pencil on Marker Paper
CHANDELIER
Design Styles: Southwest Casita
Marker & Colored Pencil on Marker Paper
SANTOS
Design Styles: Southwest Casita
Marker & Colored Pencil on Marker Paper
4
ANTIQUE BEDROOM: GALLERY FEATURED
Design Styles: Antique Bedroom
Marker & Colored Pencil on Marker Paper
GEORGIAN LAMP: GALLERY FEATURED
Design Styles: Antique Bedroom
Marker & Colored Pencil On Marker Paper
ANTIQUE CHAIR: GALLERY FEATURED
Design Styles: Antique Bedroom
Marker & Colored Pencil on Marker Paper
4
4
WINDOW TREATMENT ELEVATION: N.T.S.
Textiles & Surface Materials: Textile Application
Marker on Canson Paper
WINDOW TREATMENT ELEVATION: N.T.S.
Textiles & Surface Materials: Textile Application
Marker on Canson Paper
WINDOW TREATMENT ELEVATION: N.T.S.
Textiles & Surface Materials: Textile Application
Marker on Canson Paper
MATERIAL SELECTIONS
Textiles & Surface Materials: Textile Application
Various Contents
4
FURNITURE FLOOR PLAN: N.T.S.
Residential Space Planning: Special Needs Remodel
Manually Drafted
BOARD COMPOSTITION: N.T.S.
Residential Design: Special Needs
Furniture, Fixtures, Materials, Furniture Floor Plan & Pictorial
RENDERED FLOOR PLAN: N.T.S.
Residential Design: Special Needs
Created with Marker & Colored Pencil on Marker Paper
MASTER BEDROOM
Residential Design: Special Needs
Rendered with Marker & Colored Pencil on Marker Paper
4 4
DEMOLITION PLAN: N.T.S.
Residential Design: Barrier Free
Created in CAD
PRELIMINARY BLOCK DIAGRAM: N.T.S.
Residential Design: Barrier Free
Marker on Trace Overlay on Provided Floor Plan
4
BUBBLE DIAGRAM: N.T.S.
Residential Design: Barrier Free
Marker on Trace Paper
CONSTRUCTION PLAN: N.T.S.
Residential Design: Barrier Free
Marker Overlay on Provided Floor Plan
4
MASTER BATH CIRCULATION DIAGRAM: N.T.S.
Residential Design: Barrier Free
Sketch with Graphite
PRELIMINARY KITCHEN FLOOR PLAN: N.T.S.
Residential Design: Barrier Free
Sketch with Graphite
STUDY MODEL OF ADA KITCHEN
Residential Design: Barrier Free
Created with Foam Core
SECTION CUT OF MASTER BATH N.T.S.
Residential Design: Barrier Free
Created in CAD
PRELIMINARY MASTER BATH ELEVATION: N.T.S.
Residential Design: Barrier Free
Rendered with Marker on Trace Paper
4
PRELIMINARY FURNITURE FLOOR PLAN: N.T.S.
Residential Design: Barrier Free
Sketch with Graphite
IN-LAW SUITE
Residential Design: Barrier Free
Rendered with Marker & Colored Pencil on Marker Paper
PRELIMINARY IN-LAW SUITE ELEVATION: N.T.S.
Residential Design: Barrier Free
Rendered with Marker on Trace Paper
4
FRENCH ART DECO BOARD COMPOSITION: GALLERY FEATURED: N.T.S.
Design Styles: 20th Century Great Room
Furniture, Fixtures, Materials, Furniture Floor Plan & Pictorial
LEAF CHAIR: GALLERY FEATURED
Design Styles: 20th Century Great Room
Rendered with Marker & Colored Pencil
MINIBAR: GALLERY FEATURED
Design Styles: 20th Century Great Room
Rendered with Marker & Colored Pencil
RENDERED FLOOR PLAN:: GALLERY FEATURED N.T.S
Design Styles: 20th Century Great Room
Rendered with Marker & Colored Pencil
4
CONTEMPORARY BED
Design Styles: Contemporary Farnsworth House
Rendered with Marker & Colored Pencil
SIDE TABLE
Design Styles: Contemporary Farnsworth House
Rendered with Marker & Colored Pencil
FARNSWORTH HOUSE RENDERED FLOOR PLAN N.T.S
Design Styles: Contemporary Farnsworth House
Rendered with Marker & Colored Pencil
LIGHTING SELECTIONS
Design Styles: Contemporary Farnsworth House
Rendered with Marker & Colored Pencil
DINING TABLE
Design Styles: Contemporary Farnsworth House
Rendered with Marker & Colored Pencil
4
4
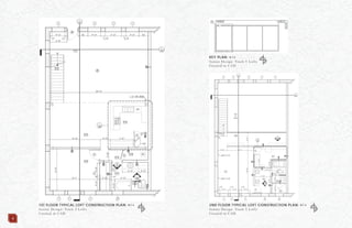
1ST FLOOR TYPICAL LOFT CONSTRUCTION PLAN: N.T.S.
Senior Design: Track 5 Lofts
Created in CAD
2ND FLOOR TYPICAL LOFT CONSTRUCTION PLAN: N.T.S.
Senior Design: Track 5 Lofts
Created in CAD
KEY PLAN: N.T.S.
Senior Design: Track 5 Lofts
Created in CAD
4
TYPICAL LOFT
Senior Design: Track 5 Lofts
Created in SketchUp
T h a n k Yo u f o r Yo u r
T i m e & C o n s i d e r a t i o n
Portfolio 2009

Portfolio 2009

  • 1.
    S a ra L . J o b s
  • 2.
    “T he detailsare not the details. T hey make the design.” -C harles E ames
  • 3.
    LUMIERE HOTEL TRES CHICRESTAURANT NATIONAL COMUTER COMPANY GREENWAY FINANCIAL PLU8H BOUTIQUE THE WINE CAR RESTAURANT C o n t r a c t D e s i g n 1 BARRIER FREE MASTER SUITE WINDOW TREATMENTS ANTIQUE BEDROOM FARNSWORTH HOUSE SOUTHWEST CASITA 20TH CENTURY GREAT ROOM BARRIER FREE REMODEL TRACK 5 LOFTS R e s i d e n t i a l D e s i g n 4 OBLIQUE LIVING ROOM EXTERIOR TWO POINT PERSPECTIVE SECTION CUT FULL WALL DETAIL MASTER SUITE DESIGN DRAWINGS FLOOR PLAN WITH ELEVATIONS Te c h n i c a l S k i l l s 3 PHOTOGRAPHY HOTEL LOGO E-CHIP LOGO LEAVE BEHIND M i s c e l l a n e o u s Wo r k s 2
  • 4.
    “D esign isdirected toward human beings. T o design is to solve human problems by identifying them and executing the best solution.” -I van C hermayeff
  • 5.
    This section focu se s on th e d e si gn and documenta ti on of va r i ou s contract space s, i n cl u d i n g of f i ce spaces, restau r a n ts, bou ti qu e s, and hotels. My a ppl i e d kn owl e d ge of space pl a n n i n g, ma te r i a l s, finishes, furnitu r e a n d l i gh ti n g, i n addition to con str u cti on d ocu me n ts and specificati on s d i spl a y s my ability to crea te e xce pti on a l a n d functional com me r ci a l spa ce s th a t will appeal to mu l ti pl e e n d u se r s. 1 C o ntr a ct D e s i g n
  • 6.
    HOTEL BOARD COMPOSITION:REGISTRATION: N.T.S. Hospitality Design: Lumiere Hotel Fixtures, Materials, Accessories, Pictorial & Furniture Floor Plan 1ST FLOOR LAYOUT: N.T.S. Hospitality Design: Lumiere Hotel Created in CAD TRANSVERSE SECTION CUT OF FLOORS 1-3: N.T.S Hospitality Design: Lumiere Hotel Created in CAD 1
  • 7.
    FURNITURE AND FIXTURESELECTIONS Hospitality Design: Lumiere Hotel Layouts created with Adobe InDesign HOTEL BOARD COMPOSITION: REGISTRATION: N.T.S. Hospitality Design: Lumiere Hotel Furniture, Material, Pictorial & Furniture Floor Plan 11 STACKING DIAGRAM: N.T.S. Hospitality Design: Lumiere Hotel Created in CAD
  • 8.
    HOTEL BOARD COMPOSITION:KING SUITE: N.T.S. Hospitality Design: Lumiere Hotel (ADA Suite) Furniture, Fixtures, Materials, Pictorial & Furniture Floor Plan ADJACENCY & CRITERIA MATRIX Hospitality Design: Lumiere Hotel (ADA Suite) Created in Microsoft Excel COVER SHEET: N.T.S Hospitality Design: Lumiere Hotel (ADA Suite) Created in CAD 1
  • 9.
    SPECIFICATION SHEET Hospitality Design:Lumiere Hotel (ADA Suite) Created in Microsoft Word CONSTRUCTION PLAN: N.T.S. Hospitality Design: Lumiere Hotel (ADA Suite) Created in CAD ADA COMPLIANT MILLWORK DETAILS: N.T.S. Hospitality Design: Lumiere Hotel (ADA Suite) Created in CAD TAILS: N.T.S. ELEVATIONS: N.T.S. Hospitality Design: Lumiere Hotel (ADA Suite) Created in CAD 1
  • 10.
    FURNITURE FLOOR PLAN:N.T.S. CAD II: Tres Chic Restaurant Created in ArchiCADBAR AREA RENDERING CAD II: Tres Chic Restaurant Created in ArchiCAD INTERIOR ELEVATION: N.T.S. CAD II: Tres Chic Restaurant Created in ArchiCAD 1
  • 11.
    1 FURNITURE FLOOR PLAN:N.T.S. Commercial Space Planning: Greenway Financial Office Manually Drafted LONGITUDINAL DESIGN SECTION CUT: N.T.S. Commercial Space Planning: Greenway Financial Office Manually Drafted DIMENSIONED CONSTRUCTION PLAN: N.T.S. Commercial Space Planning: Greenway Financial Office Manually Drafted
  • 12.
    2ND FLOOR FURNITUREFLOOR PLAN: N.T.S. Commercial Design: National Computer Company Created in CAD1
  • 13.
    2ND FLOOR REFLECTEDCEILING PLAN: N.T.S. Commercial Design: National Computer Company Created in CAD RENDERED 1ST FLOOR PLAN: N.T.S. Commercial Design: National Computer Company Rendered in Adobe Photoshop 1 CODE SUMMARY CHECKLIST Commercial Design: National Computer Company Created in Microsoft Word 2ND FLOOR POWER/COMMUNICATION PLAN: N.T.S. Commercial Design: National Computer Company Created in CAD
  • 14.
    PRELIMINARY ELEVATIONS: N.T.S. CommercialSpace Planning: Plush Boutique Colored Pencil on Graph Paper RENDERED FLOOR PLAN: N.T.S. Commercial Space Planning: Plush Boutique Marker on Vellum PRELIMINARY ELEVATIONS: N.T.S. Commercial Space Planning: Plush Boutique Colored Pencil on Graph Paper FACADE ELEVATION: N.T.S. Commercial Space Planning: Plush Boutique Marker on Vellum1
  • 15.
    1 RESTAURANT ENTRY Senior Design:The Wine Car Restaurant Created in SketchUp WINE CELLAR MODEL Senior Design: The Wine Car Restaurant Created with Balsa & Bass Wood, Plexiglass & Soft Metal Wire CONSTRUCTION PLAN: N.T.S. Senior Design: The Wine Car Restaurant Created in CAD
  • 16.
    “T he wholedifference between construction and creation is this; that a thing constructed can only be loved after it is constructed; but a thing created is loved before it exists.” - G .K . C hesterton
  • 17.
    The following se cti on d e mon str a te s a clear unde r sta n d i n g of th e various funda me n ta l me th od s utilized to vis u a l l y commu n i ca te design in an eff e cti ve ma n n e r . Su ch techniques incl u d e : r e n d e r i n g of textiles and m a te r i a l s wi th va r i ou s media, model con str u cti on , ma n u a l drafting, perspe cti ve , obl i qu e , et cetera. F u r th e r mor e , th i s section highligh ts kn owl e d ge of construction co mpon e n ts, f u r n i tu r e design, and l i gh ti n g a ppl i ca ti on . 2 Te ch ni ca l S k i l l s
  • 18.
    2 PLAN OBLIQUE: N.T.S. DesignDrawing: Living Area Manually Drafted TWO POINT PERSPECTIVE: N.T.S. Design Drawing: Storefront Manually Drafted STUDENT LOUNGE: N.T.S. Lighting: Light Study Charcoal on Canson Paper
  • 19.
    2 FULL BUILDING SECTION:N.T.S. Building Structures: Structure Components Manually Drafted STUDENT LOUNGE ELEVATION: N.T.S. Lighting: Light Study Charcoal on Canson Paper FULL WALL DETAIL: N.T.S. Building Structures: Structure Components Manually Drafted
  • 20.
    VANITY MODEL Furniture Design:Vanity Rendered Balsa Wood VANITY ELEVATION: N.T.S. Furniture Design: Vanity Manually Drafted SECTION & DETAILS: N.T.S. Furniture Design: Vanity Manually Drafted 2
  • 21.
    LIVING ROOM Rendering: LivingRoom Colored Pencil on Canson Paper 2
  • 22.
    2 EXTERIOR EVALUATION Commercial SpacePlanning: La Encantada Observation Manually Drawn PLAN OBLIQUE: N.T.S. Design Drawing: Master Suite Manually Drafted FURNITURE FLOOR PLAN: N.T.S. Design Drawing: Master Suite Manually Drafted
  • 23.
    2 DIMENSIONED FINISH FLOORPLAN & PROJECTED ELEVATIONS: N.T.S. Drafting: Final Project Manually Drafted
  • 24.
    MASTER BEDROOM Rendering: Pictorial& Materials Marker on Canson Paper 2
  • 25.
    ATTIC SPACE Rendering: AtticSpace Watercolor on Illustration Board ELEVATION: N.T.S. Rendering: Attic Space Watercolor on Illustration Board ELEVATION: N.T.S. Rendering: Attic Space Watercolor on Illustration Board 2
  • 26.
    “C reativity isallowing yourself to make mistakes. D esign is knowing which ones to keep” -S cott A dams
  • 27.
    This section focu se s on a va r i e ty of skills that I h a ve d e mon str a te d through other a ve n u e s, bu t a r e none the less a ppl i ca bl e to th e interior design f i e l d . Su ch ski l l s include effecti ve commu n i ca ti on , research, critica l th i n ki n g, vi su a l composition, pa ge l a y ou ts, l ogo design, and gr a ph i c d e si gn . 3 M i s ce l lan e o u s W o r k s
  • 28.
    3 RESTING DOBERMAN Photography: ManualPhotography Black & White 35mm Film HOTEL LOGO Hospitality Design: Lumiere Hotel Created in InDesign VANITY Photography: Manual Photography Black & White 35mm Film
  • 29.
    3 HEAD VASE Photography: ManualPhotography (Soft Focus) Black & White 35mm Film COMPUTER RECYCLING COMPANY LOGO Environmental Design: Business Proposal Created in InDesign NOSTALGIA Photography: Manual Photography Black & White 35mm Film SAXOPHONE Photography: Manual Photography Black & White 35mm Film
  • 30.
    3 COVER PAGE: GALLERYFEATURED Advanced Presentation: Leave Behind Created in InDesign MATERIAL SELECTIONS: GALLERY FEATURED Advanced Presentation: Leave Behind Created in InDesign ACCESSORY SELECTIONS: GALLERY FEATURED Advanced Presentation: Leave Behind Created in InDesign SPACE PLANNING: GALLERY FEATURED Advanced Presentation: Leave Behind Created in InDesign & SketchUp
  • 31.
    3 DESIGNER INFORMATION: GALLERYFEATURED Advanced Presentation: Leave Behind Created in InDesign FURNITURE SELECTIONS: GALLERY FEATURED Advanced Presentation: Leave Behind Created in InDesign LIGHTING SELECTIONS: GALLERY FEATURED Advanced Presentation: Leave Behind Created in InDesign
  • 32.
    “D esign isthe contrast of the core of limitations therefore there are no boundaries. I t is simply an interpretation of creativity.” -J enaiha W oods
  • 33.
    Lastly, this section con ce n tr a te s on various sol u ti on s to r e si d e n ti a l projects. Each p r oje ct i s th e r e su l t of meeting a speci f i c e n d u se r s n e e d s, including various d e si gn sty l e s, col or schemes and p h y si ca l n e e d s, su ch as barrier free or a gi n g i n pl a ce . I was able to achi e ve e f f e cti ve r e su l ts through my appl i ca ti on of e sse n ti a l design principl e s a n d pr a cti ce s. 4 R e si d e nti a l D e s i g n
  • 34.
    SANTA FE BOARDCOMPOSITION: N.T.S. Design Styles: Southwest Casita Furniture, Fixtures, Pictorial & Elevations PRESSED TIN LIGHT FIXTURE Design Styles: Southwest Casita Marker & Colored Pencil on Marker Paper EXTERIOR LIGHT FIXTURE Design Styles: Southwest Casita Marker & Colored Pencil on Marker Paper 4
  • 35.
    SPANISH MISSION EXTERIORELEVATION: N.T.S. Design Styles: Southwest Casita Marker & Colored Pencil on Marker Paper SPANISH MISSION FIREPLACE ELEVATION: N.T.S. Design Styles: Southwest Casita Marker & Colored Pencil on Marker Paper SPANISH MISSION INTERIOR ELEVATION: N.T.S. Design Styles: Southwest Casita Marker & Colored Pencil on Marker Paper SPANISH MISSION ARMOIRE Design Styles: Southwest Casita Marker & Colored Pencil on Marker Paper CHANDELIER Design Styles: Southwest Casita Marker & Colored Pencil on Marker Paper SANTOS Design Styles: Southwest Casita Marker & Colored Pencil on Marker Paper 4
  • 36.
    ANTIQUE BEDROOM: GALLERYFEATURED Design Styles: Antique Bedroom Marker & Colored Pencil on Marker Paper GEORGIAN LAMP: GALLERY FEATURED Design Styles: Antique Bedroom Marker & Colored Pencil On Marker Paper ANTIQUE CHAIR: GALLERY FEATURED Design Styles: Antique Bedroom Marker & Colored Pencil on Marker Paper 4
  • 37.
    4 WINDOW TREATMENT ELEVATION:N.T.S. Textiles & Surface Materials: Textile Application Marker on Canson Paper WINDOW TREATMENT ELEVATION: N.T.S. Textiles & Surface Materials: Textile Application Marker on Canson Paper WINDOW TREATMENT ELEVATION: N.T.S. Textiles & Surface Materials: Textile Application Marker on Canson Paper MATERIAL SELECTIONS Textiles & Surface Materials: Textile Application Various Contents
  • 38.
    4 FURNITURE FLOOR PLAN:N.T.S. Residential Space Planning: Special Needs Remodel Manually Drafted
  • 39.
    BOARD COMPOSTITION: N.T.S. ResidentialDesign: Special Needs Furniture, Fixtures, Materials, Furniture Floor Plan & Pictorial RENDERED FLOOR PLAN: N.T.S. Residential Design: Special Needs Created with Marker & Colored Pencil on Marker Paper MASTER BEDROOM Residential Design: Special Needs Rendered with Marker & Colored Pencil on Marker Paper 4 4
  • 40.
    DEMOLITION PLAN: N.T.S. ResidentialDesign: Barrier Free Created in CAD PRELIMINARY BLOCK DIAGRAM: N.T.S. Residential Design: Barrier Free Marker on Trace Overlay on Provided Floor Plan 4 BUBBLE DIAGRAM: N.T.S. Residential Design: Barrier Free Marker on Trace Paper
  • 41.
    CONSTRUCTION PLAN: N.T.S. ResidentialDesign: Barrier Free Marker Overlay on Provided Floor Plan 4
  • 42.
    MASTER BATH CIRCULATIONDIAGRAM: N.T.S. Residential Design: Barrier Free Sketch with Graphite PRELIMINARY KITCHEN FLOOR PLAN: N.T.S. Residential Design: Barrier Free Sketch with Graphite STUDY MODEL OF ADA KITCHEN Residential Design: Barrier Free Created with Foam Core SECTION CUT OF MASTER BATH N.T.S. Residential Design: Barrier Free Created in CAD PRELIMINARY MASTER BATH ELEVATION: N.T.S. Residential Design: Barrier Free Rendered with Marker on Trace Paper 4
  • 43.
    PRELIMINARY FURNITURE FLOORPLAN: N.T.S. Residential Design: Barrier Free Sketch with Graphite IN-LAW SUITE Residential Design: Barrier Free Rendered with Marker & Colored Pencil on Marker Paper PRELIMINARY IN-LAW SUITE ELEVATION: N.T.S. Residential Design: Barrier Free Rendered with Marker on Trace Paper 4
  • 44.
    FRENCH ART DECOBOARD COMPOSITION: GALLERY FEATURED: N.T.S. Design Styles: 20th Century Great Room Furniture, Fixtures, Materials, Furniture Floor Plan & Pictorial LEAF CHAIR: GALLERY FEATURED Design Styles: 20th Century Great Room Rendered with Marker & Colored Pencil MINIBAR: GALLERY FEATURED Design Styles: 20th Century Great Room Rendered with Marker & Colored Pencil RENDERED FLOOR PLAN:: GALLERY FEATURED N.T.S Design Styles: 20th Century Great Room Rendered with Marker & Colored Pencil 4
  • 45.
    CONTEMPORARY BED Design Styles:Contemporary Farnsworth House Rendered with Marker & Colored Pencil SIDE TABLE Design Styles: Contemporary Farnsworth House Rendered with Marker & Colored Pencil FARNSWORTH HOUSE RENDERED FLOOR PLAN N.T.S Design Styles: Contemporary Farnsworth House Rendered with Marker & Colored Pencil LIGHTING SELECTIONS Design Styles: Contemporary Farnsworth House Rendered with Marker & Colored Pencil DINING TABLE Design Styles: Contemporary Farnsworth House Rendered with Marker & Colored Pencil 4
  • 46.
    4 1ST FLOOR TYPICALLOFT CONSTRUCTION PLAN: N.T.S. Senior Design: Track 5 Lofts Created in CAD 2ND FLOOR TYPICAL LOFT CONSTRUCTION PLAN: N.T.S. Senior Design: Track 5 Lofts Created in CAD KEY PLAN: N.T.S. Senior Design: Track 5 Lofts Created in CAD
  • 47.
    4 TYPICAL LOFT Senior Design:Track 5 Lofts Created in SketchUp
  • 49.
    T h an k Yo u f o r Yo u r T i m e & C o n s i d e r a t i o n