MehtaP Yuksel
                   DesigN PortfoliO




DesigN PortfoliO
MehtaP YukseL
Portfolio Cover   1
                                   Contents    2

Resume   3
                                   Biography   4

Designer’s Perspective     5

                                   Commercial Design    6-13

Advanced Residential Design Studio    14-20

                                   Environmental Design   21-27

Construction Documents     28-39

                                   Thesis Development   40-48

Internship   49-62

                                   From the Archive   63-65

3D Space Planning     66
                                                                  Contents
WORK EXPERIENCE
                                                                                                                                CAREER GOAL
Interior Design Internship at CAG Architectural Workshop June 1-Sep 25, 2010 in Ankara, Turkey
                                                                                                                       To obtain a position at an
EDUCATION                                                                                                            architectural design firm to
                                                                                                            experience the advanced skills and
2006-2010 Art Institute of Pittsburgh, Interior design, BS Program-CIDA                                    creativity in commercial design with
                                                                                                                           sustainable concerns
2005-2006 Art Institute of Pittsburgh, Residential Design Diploma
ACHIEVEMENTS                                                                                                                             SKILLS
                                                                                                    Free hand drawing and rendering, AutoCAD
LEED-NC Study Workshop at Kirksey, Houston, TX, 2009                                                  (metric and imperial), Power Point, Excel,
Gulf Coast Green, Student Competition, Houston, TX, 2009                                     Microsoft Word, Photoshop, 3DMax, and advanced
                                                                                                                teaching and presentation skills
IIDA Student Sustainable Design Competition, 2010

ACADEMICAL DEGREES
BS in Biology
MS in Morphology
PhD in Anatomy
BS in Interior Design
ASSOCIATIONS
ASID since 2006
IIDA since 2008




Mehtap Yuksel
Vanderbilt St. Houston, TX 77005 H (713) 589 3626 C (832) 766 3300
yukselgiller@gmail.com                                                                                                              Resumé
I was born in Kastamonu, Turkey. Although I had always wanted to be a
                        designer, my family culture said it could only be a hobby and I should have a
                             real career first. I finished Biology and earned my master and doctorate
                                 degrees in Human Anatomy. I worked in medical schools as a faculty
                               member and loved teaching, but I never ceased thinking about design.

                          In my fifteen years of teaching and working in Anatomy, I drew illustrations
                             for medical books and periodicals. In the meantime, I kept designing my
                               home, my close friends’ and relatives’ homes, and offices where I have
                              worked. It was a hobby as my family thought, but definitely not enough.
                            Although I wish I could’ve started my design career earlier, I am so glad I
                                    finally went for my dream career and took Interior Design courses.

                              I know that this is not only my dream, but the best thing I could do with
                                            my heart and soul. I know this is what I should do and will
                                            with an endless learning and creativity. This is what I love.




Back to Contents Page                                                                    Biography
Design should be in an “original”, “innovative”, and “aesthetically appealing” way that increases the quality of life for “everybody”
                                                               It should offer excitement as a result of aesthetics with functionality
           I believe that designers have profound responsibility to the life styles and qualities as well as to the future generations




   Back to Contents Page                                                                                Designer’s Perspective
Concept




Plans




Details




     Back to Contents Page   Advanced Commercial Design Studio
CONCEPT STATEMENT
                               “Trackers” is an exclusive sporting goods retail
                               company selling custom-made equipment for the serious
                               runners. The store’s reputation in the athletic world is
                               exceptional and clientele come from all over the world. The
                               company recently bought the first floor of a building on
                               Massachusetts Avenue, in the City of Cambridge, Boston. The
                               frontal façade demonstrates significant historic features and
                               it will be preserved according to the state’s and region’s
                               historic preservation guidelines. By integrating old and new
                               as much as shopping and sporting, new store targets to
                               attract Boston’s runners. The concept is to impress the
                               visitors with their futuristic open store space through an
                               amazing historical façade.




cONCEPT   Back to Title Page                               Advanced Commercial Design Studio
pLANS   Back to Title Page   Advanced Commercial Design Studio
JUICE BAR



pLANS   Back to Title Page   Advanced Commercial Design Studio
pLANS   Back to Title Page   Advanced Commercial Design Studio
dETAILS   Back to Title Page   Advanced Commercial Design Studio
Cash/Wrap Counter Front View




          Cash/Wrap Counter Back View




dETAILS                Back to Title Page   Advanced Commercial Design Studio
dETAILS   Back to Title Page   Advanced Commercial Design Studio
Concept




 Plans




Details




          Back to Contents Page   Advanced Residential Design Studio
DESIGN CONCEPT
                                          The Thornton family bought a newly constructed
                                      house in Chicago and they need to cooperate with a
                                designer to enhance the existing architectural features in
                                    the foyer, living room, home-office, and home theater
                                  spaces. The Thornton House will be nesting to Mr. and
                                Mrs. Thornton, their daughter, Alice, and Mrs. Thornton’s
                                                                             father, Mr. Craig.
                                      The family wants a formal look in their interiors that
                                  is not too feminine. Their existing furniture is Victorian
                                 style and they like to see the era all over the space. Our
                                design team will use the design elements of Victorian era
                                   such as the crown medallions and crown moldings on
                                ceilings, sash large panels of windows, door frames with
                                        the rosettes, floral patterns for the upholstery, and
                                       Victorian floor tiles. We don’t want the family to get
                               overwhelmed with too much floral patterns, colors, crown
                                 moldings, and feminine elements around. They want an
                                     uncluttered, formal look in their house. So we aim to
                                balance the used historical features with the use of plain
                                   velvets; painted walls instead of patterned wall papers
                                          and avoid using the patterned rugs on the floors.




cONCEPT   Back to Title Page   Advanced Residential Design Studio
pLANS   Back to Title Page   Advanced Residential Design Studio
pLANS   Back to Title Page   Advanced Residential Design Studio
dETAILS   Back to Title Page   Advanced Residential Design Studio
Living Room and Home Theater West Wall




    Living Room East Wall




dETAILS                     Back to Title Page   Advanced Residential Design Studio
dETAILS   Back to Title Page   Advanced Residential Design Studio
Concept




Plans




Details




        Back to Contents Page   Environmental Design
DESIGN CONCEPT for XENO
          Xeno is a consulting firm for traditional
          clothing stores. The parent company is in
          the United States, and their main mission is
          to have a larger firm in Avignon, France.
          They dedicate themselves not only to keep
          their impact in France, but take it to higher
          levels through an eco-friendly building, and
          they aim to obtain at least a gold LEED-CI
          certificate with their building standards.
          The firm plans to invest $700,000.00 in a
          spectacular new office in Avignon, France.
          The project requires obtaining a LEED
          building standards with minimum of a gold
          certificate rating as its parent company in
          the United States. They want to keep being
          at the forefront of the sustainable building
          movement throughout their subsidiary
          companies. The design principles will
          address a functional, healthy, sustainable,
          and aesthetically appealing office
          environment meeting with the universal
          design standards.
          This project will be based on the “waste
          nothing”, “use free resources”, and “create
          a livable environment” principles of the
          sustainable design goals. The local
          resources, especially the beautiful
          Mediterranean sunlight, the wind from the
          Alps, and the abundant local water sources
          will be our main resources.




cONCEPT                Back to Title Page                 Environmental Design
The goal of
    the project is
    to ensure that
       the building
          will earn
             Gold-
     certification
   level LEED CI
           credits




pLANS                 Back to Title Page   Environmental Design
Site location close to
     public transportation

                Alternative
   transportation (bicycle)
      As much daylight as
      possible through the
    transparent partitions,
    windows and skylights

         Fluorescent light
    fixtures with dimmers
  and occupancy sensors

     Light reflector colors

     Indoor Environmental
  Quality materials as well
   as low emitting, rapidly
      renewable materials,
  materials with no VOCs,
   reclaimed and recycled
                 materials

       Clay paint-no VOCs

        Regional materials

  Open space planning for
               better IAQ

      Low flow toilets and
                   faucets

  Irrigation by storm water
     and treated gray-water

   Energy Star Appliances

    Solar energy systems
    for heating and water-
                  heating

    Rain water harvesting,
      wet-island, pervious
   concrete, sandbags for
      the drainage outlets

                Green roof




pLANS                         Back to Title Page   Environmental Design
F1 Rondi Sofa 2.13mWx0.83mDx 0.45mH
       F2 Slant table 0.4mDx1.11mWx0.43mH
         F3 Satellite Reception Desk 2175 mm
                                        Radius
   F4 Aside Chairs 0.43mD 0.57mWx 0.43mH
      F5 Ripple lounge seat 0.45mDx 0.88mW
                                       0.45mH
       F6 Nigel sofa 80cmHx200cmWx60cmD
                F7 Pensi table 1.2mDx0.74mH
    F8 Steno chair/ CST 0.60mW X 0.60mD X
                                       0.91mH
                 F9 Aeron work chair 0.40mDx
                         0.48mWX0.44m seat H
   F10 Propeller training desk1.06 mDx0.6m-
                                       0.76m H
   F11 R-pull freestanding pedestal 0.50mDx
                               0.37mW 0.69mH
            F12 Caper chair 0.43mDx0.61mWx
                                       0.45mH
          F13 Propeller Training Table 0.91mD
                               1.99mW 0.73mH
      F14 Conference table Rectangular table
                      0.60mDx1.52mWx0.73mH
              Trapezoid table 0.60mDx1.91mR
        F15 Resolve Display Screen 0.91mWx
                                       0.84mH
       F15a Resolve Display Screen1.52mWx
                                       1.21mH
     F16 Resolve short pole 1.21m Hx0.3m D
       F16a Resolve tall pole 2.42mHx0.3m D
                F17 Boomerang Work Surface
               0.63mD 1.21mW 0.55m-0.81mH
                                   (adjustable)
      F18 Extended boomerang work surface
            0.63mDx 1.21mW 0.55m-0.81m HH
    F18a Extended boomerang work surface
              0.63mDx 3.0m W 0.55m-0.81m H
           F19 Resolve Cabinet, Pole attached
                       0.43mD 0.37mW 1.21mH
    F20 Handkerchief Chair 0.58m W x 0.57m
                                   D x 0.73m H
                        F21 Topo Work surface
     1.77m W x 0.6m-0.81m” D x adjustable H
                            F22 Topo credenza
                    1.42m W x1.5m D x 0.81mH




pLANS                           Back to Title Page   Environmental Design
pLANS   Back to Title Page   Environmental Design
Reused material
                                                                                           from
                                                                                           the old steel
                                          Recycled glass 40% recycled material-cardboard   chairs




                                                                                      Rapidly renewable material


                                          Green Planet Paints   Aeron Chairs      100% recycled content

              Certified 21 to 26 points
              Silver 27 to 31 points
              Gold 32 to 41 points
              Points earned for
              “XENO” Project: 44




dETAILS   Back to Title Page                                                                                       Environmental Design
Concept




Plans




Details




        Back to Contents Page   Construction Documents
DESIGN STATEMENT (XENO ADDITIONAL BUILDING)
          Xeno is a consulting firm for traditional clothing stores. The parent company is in the United States and
          their main mission was to have an addition to their larger firm in Avignon, France. The key to the project
          was in constructing the additions to this office space with the same design principles as previously
          addressed; a functional, healthy, sustainable, and aesthetically appealing office environment that meets
          with the universal design standards.
          The XENO has needed to add two main parts to the existing building as the public areas (Reception, Break
          Room, Source Room, and Restrooms) and the work spaces (Offices and Conference Room). The four
          executive offices were extended from the north façade of the building while the library and the conference
          room were located at the south façade. This way, the reception was relocated to the space between two
          secretary offices at the central north part of the space, welcoming visitors from the main entrance at the
          north side. The environment was the most important effect on the company and its employees, helping to
          revitalize the corporate cultures, hence, the new additions also have been designed with highest interior air
          quality as well as the highest possible level of daylight and beautiful view of Avignon. The water use has
          been reduced by using the ultra-low-flow toilets and faucets. All of the materials including the systems
          furniture have been selected as “sustainable”.
          The colors have been selected from the light tones to reflect as much day light as possible while all of the
          paints and finishes were VOC-free. The reception has been floored with reclaimed oak in its natural color
          and the majority of rest of the space has been floored by carpet in warm earth colors. All of the additional
          ceilings and walls have been in matte crème color. The furniture as well have been in warm natural colors
          like earth tones and crème that created a nice match with beautiful view of Avignon and various tones of
          brown and green, all around.
          Like all other design elements, lighting has been utilized based on the sustainable design principles. The
          space has been allocated to get as much daylight as possible through the abundant windows and the
          skylights while the fluorescent light fixtures and fluorescent down lights have been used for the ambient
          lighting.
          All of the design elements have been contemporary in style as this “eco-friendly” building has been
          designed as a futuristic model not only in regards to the sustainability, but also in aesthetic features and
          accessibility.




cONCEPT   Back to Title Page                                                                            Construction Documents
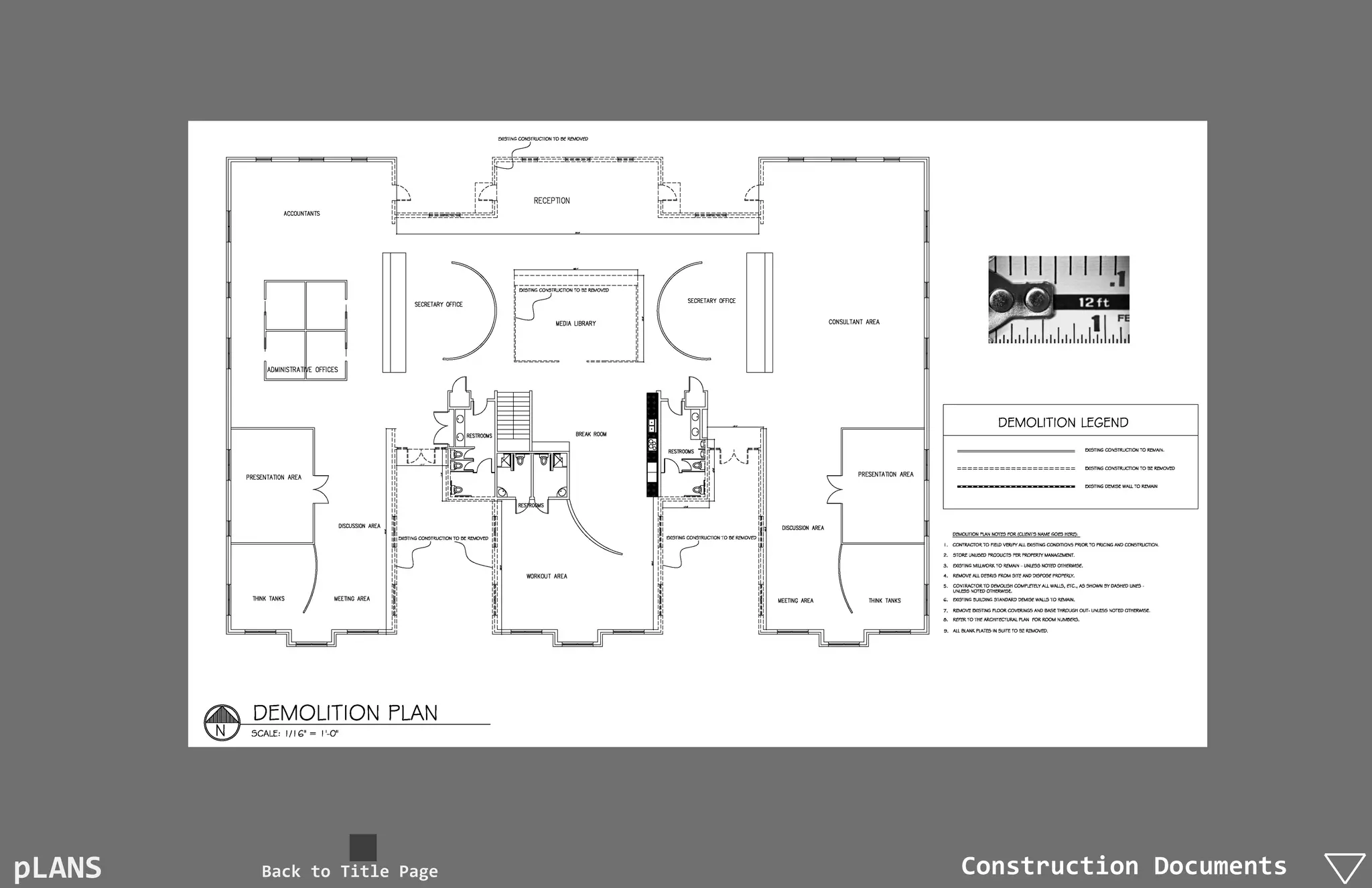
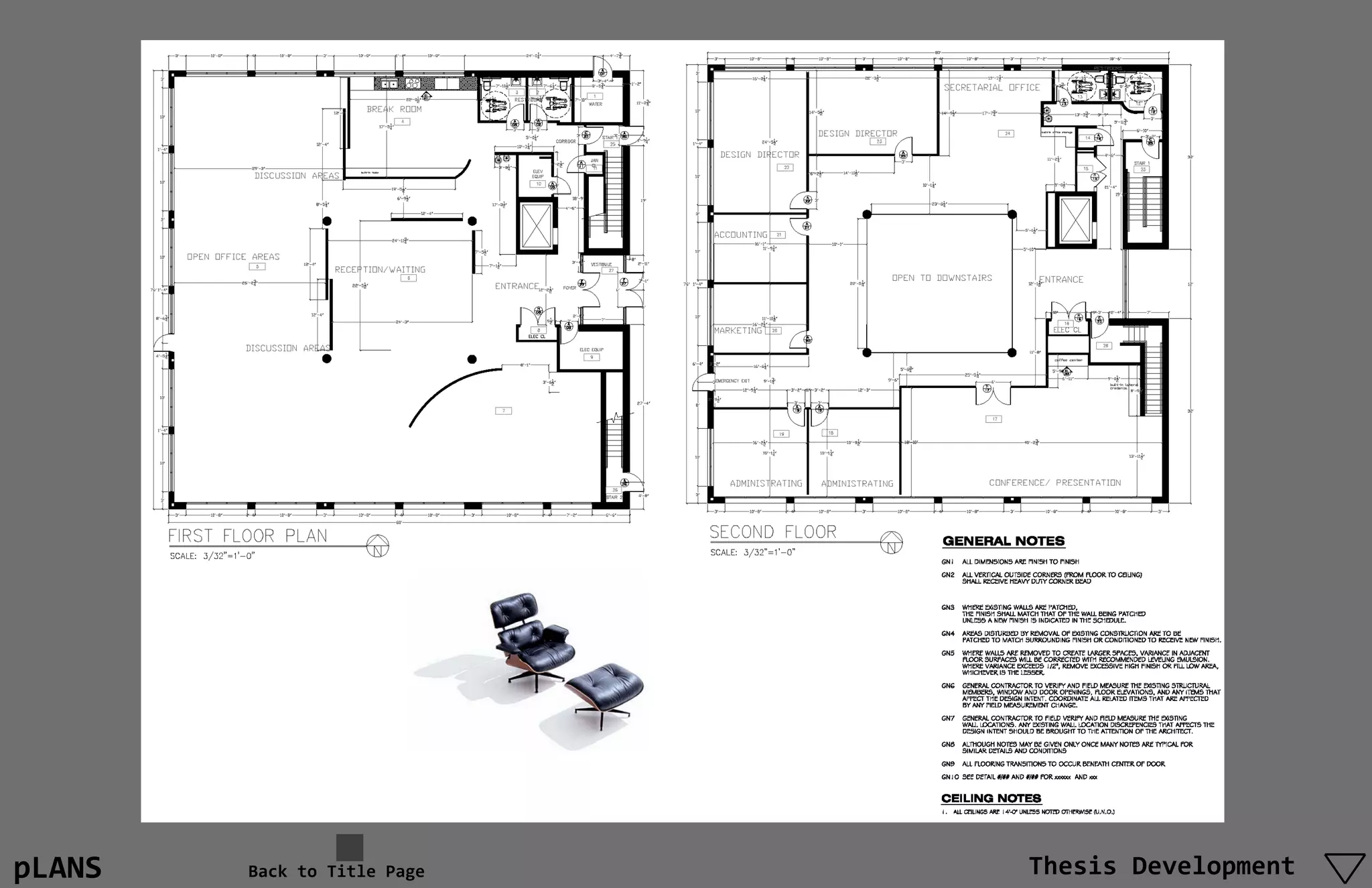
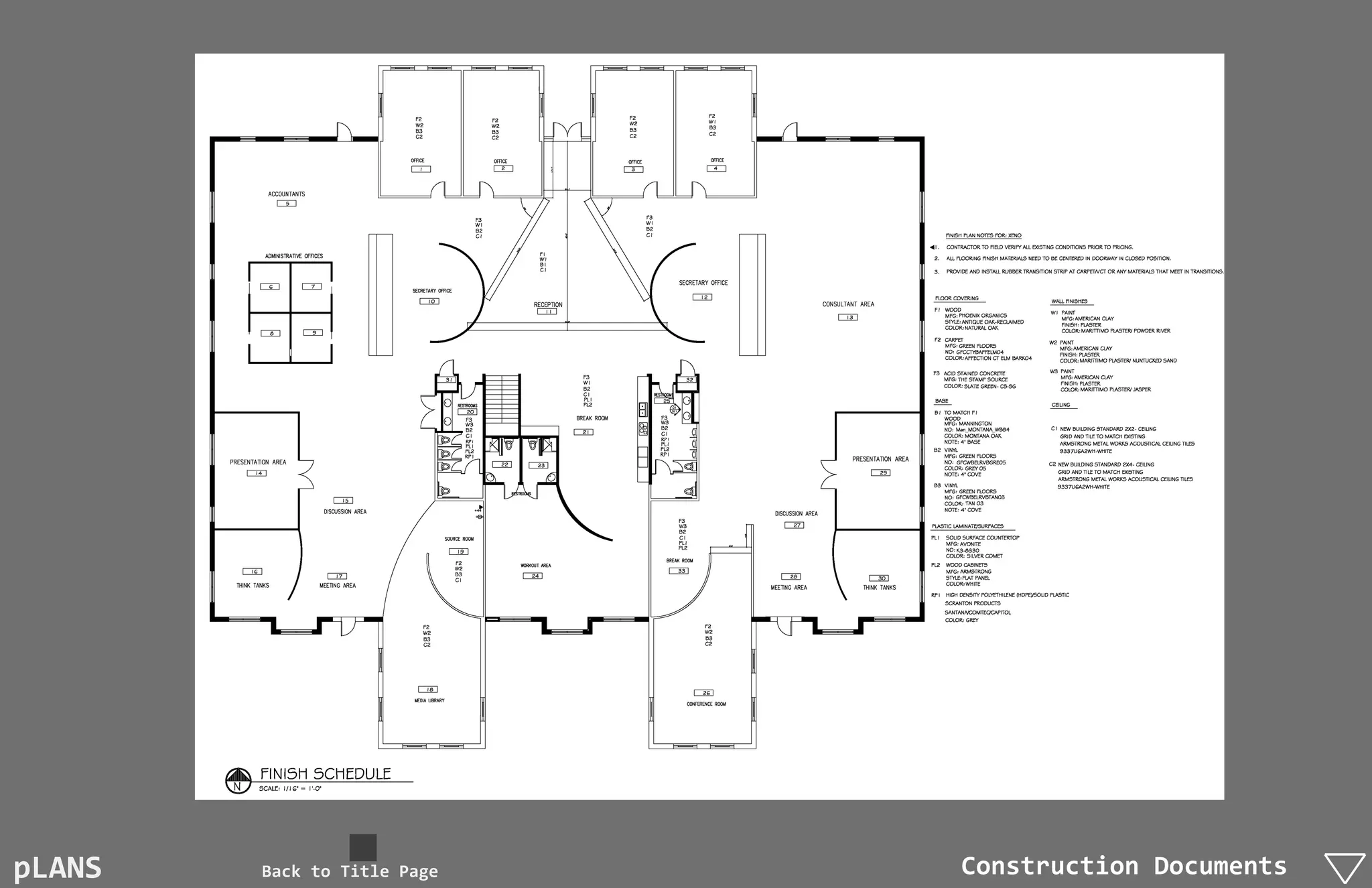
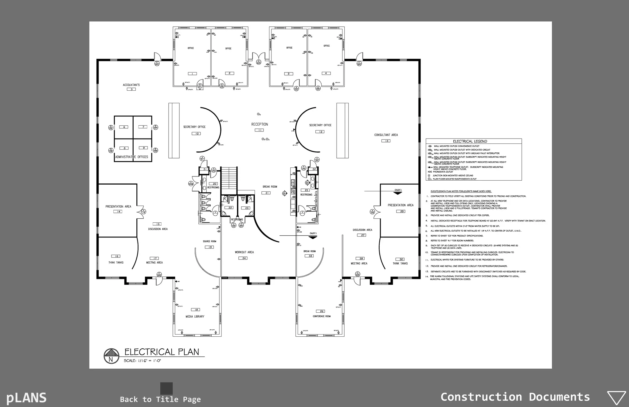
pLANS   Back to Title Page   Construction Documents
pLANS   Back to Title Page   Construction Documents
pLANS   Back to Title Page   Construction Documents
pLANS   Back to Title Page   Construction Documents
pLANS   Back to Title Page   Construction Documents
pLANS   Back to Title Page   Construction Documents
pLANS   Back to Title Page   Construction Documents
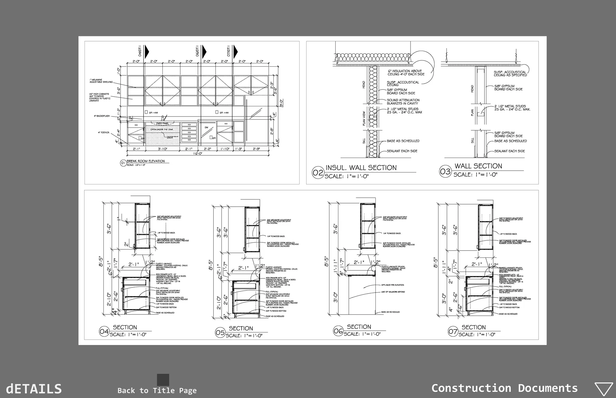
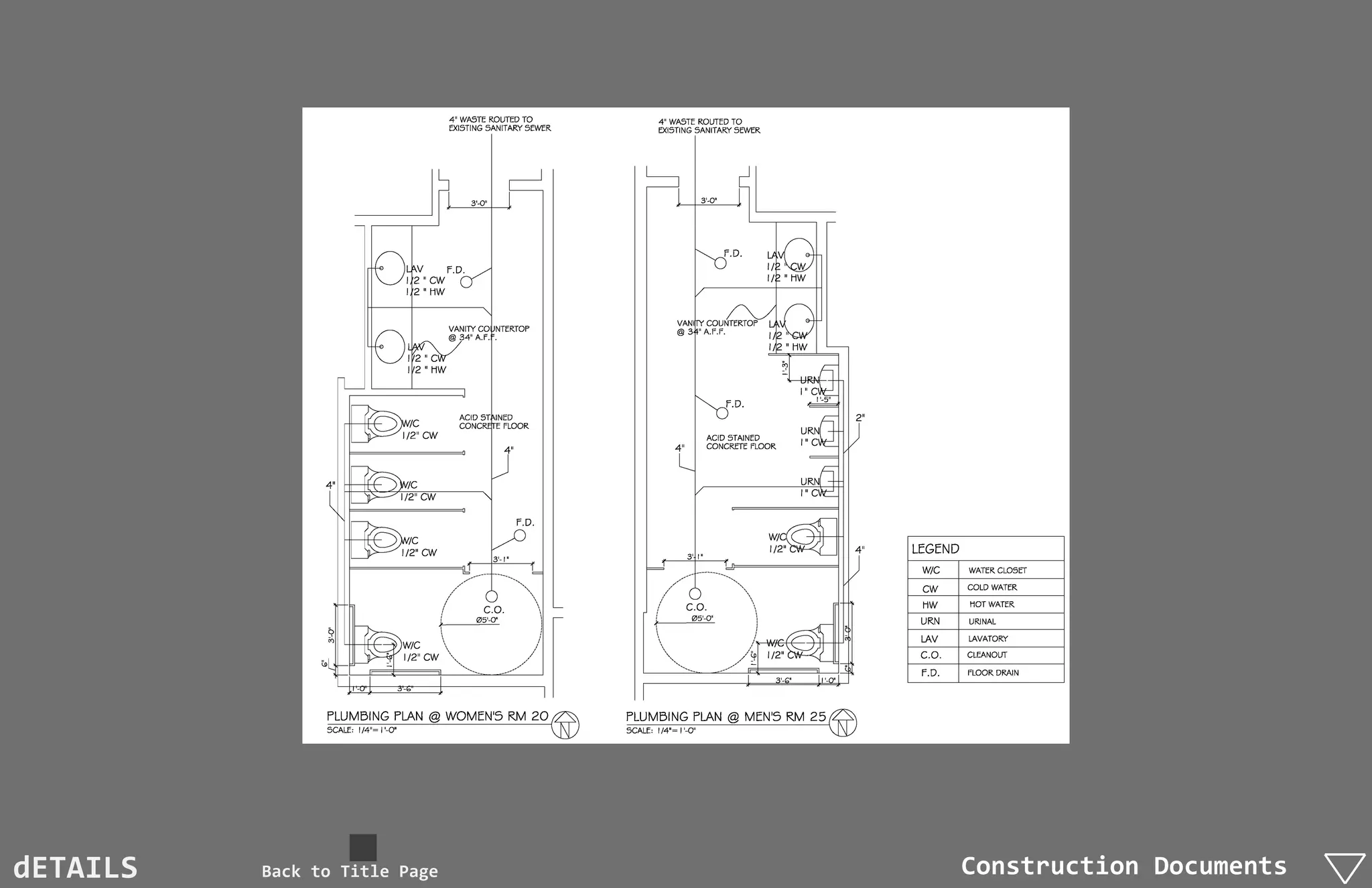
dETAILS   Back to Title Page   Construction Documents
dETAILS   Back to Title Page   Construction Documents
dETAILS   Back to Title Page   Construction Documents
Concept




Plans




Details




        Back to Contents Page   Thesis Development
CONCEPT STATEMENT
                           “The LineaR represents a new
                           design group that has been
                           recently founded in Houston,
                           Texas by two designers, Ray
                           Lawson and Kelly Renshaw.
                           They focus the Bauhaus design
                           ideals as they believe it is time
                           to put all basic design elements
                           together such as the aesthetics,
                           functionality, simplicity, quality,
                           and originality with the
                           combination of universal design
                           principles and environmental
                           concerns. Their main goal is to
                           create interiors for the
                           commercial and residential
                           clients while creating new
                           design products. They need
                           three main groups to focus three
                           different markets: commercial
                           design, residential design, and
                           product design.




cONCEPT   Back to Title Page                                     Thesis Development
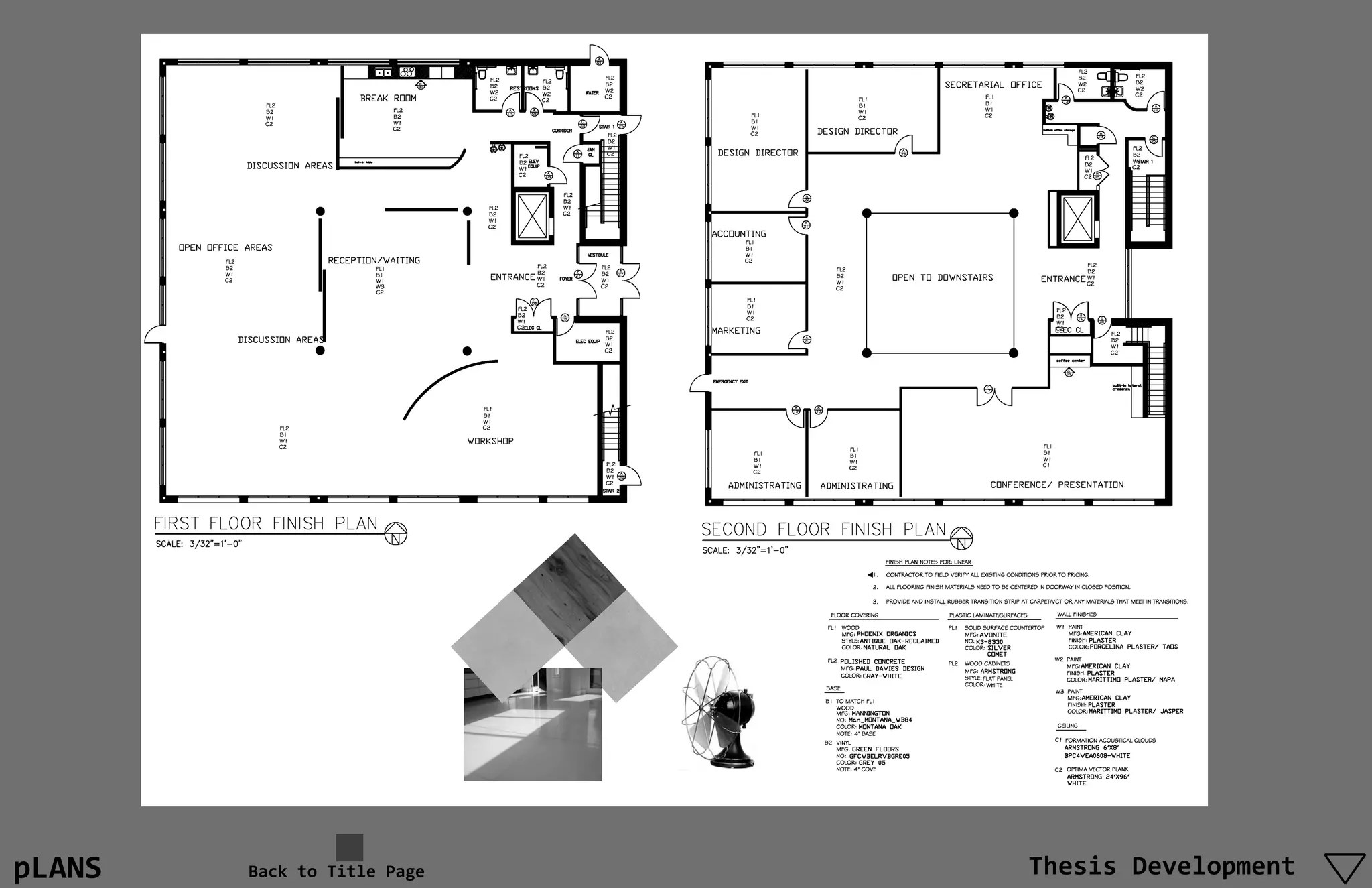
pLANS   Back to Title Page   Thesis Development
pLANS   Back to Title Page   Thesis Development
pLANS   Back to Title Page   Thesis Development
pLANS   Back to Title Page   Thesis Development
pLANS   Back to Title Page   Thesis Development
dETAILS   Back to Title Page   Thesis Development
dETAILS   Back to Title Page   Thesis Development
Concept




Plans




Details




          Back to Contents Page   INTERNSHIP
The internship project-
                    MKB Ankara- has taken
                     place in Ankara, Turkey
                      between June 1, 2010
                   and September 23, 2010
                      at CAG AW (Celal Abdi
                            Guzer Architectural
                          Workshop) . Besides
                           some other ongoing
                   projects, this project was
                     the most significant one
                    showing the kitchen and
                     bathroom designs of 28
                   apartment units including
                       six terrace apartments
                           with a total of seven
                   different residential units.
                    Given the opportunity to
                  fulfill all of the kitchen and
                  bathroom designs-as well
                      as dressing rooms and
                          entrances-, profound
                       experience have been
                    acquired in terms of the
                                 local materials,                 MEHTAP YÜKSEL
                          manufacturers, client
                             presentations, and       ART INSTITUTE PITTSBURGH
                           professional level of
                 communication. Presented                      ID451 INTERNSHIP
                             images have been
                       selected from some of
                                                        InstructoR: Sherri MangiN
                    those housing units that                            Sep, 2010
                   have been designed with
                          the same concept of
                                                                          CAG AW
                  contemporary style as the                 MKB Ankara, TÜRKİYE
                       owner of the company
                                       asked for.   Supervisor: CelaL Abdi GüzeR



Back to Title Page                                      INTERNSHIP
NORTH WALL ELEVATION




mehtap yuksel   Back to Title Page   INTERNSHIP
CEILING PLASTER




mehtap yuksel   Back to Title Page                     INTERNSHIP
FACING TO KITCHEN NORTH WALL




mehtap yuksel   Back to Title Page                        INTERNSHIP
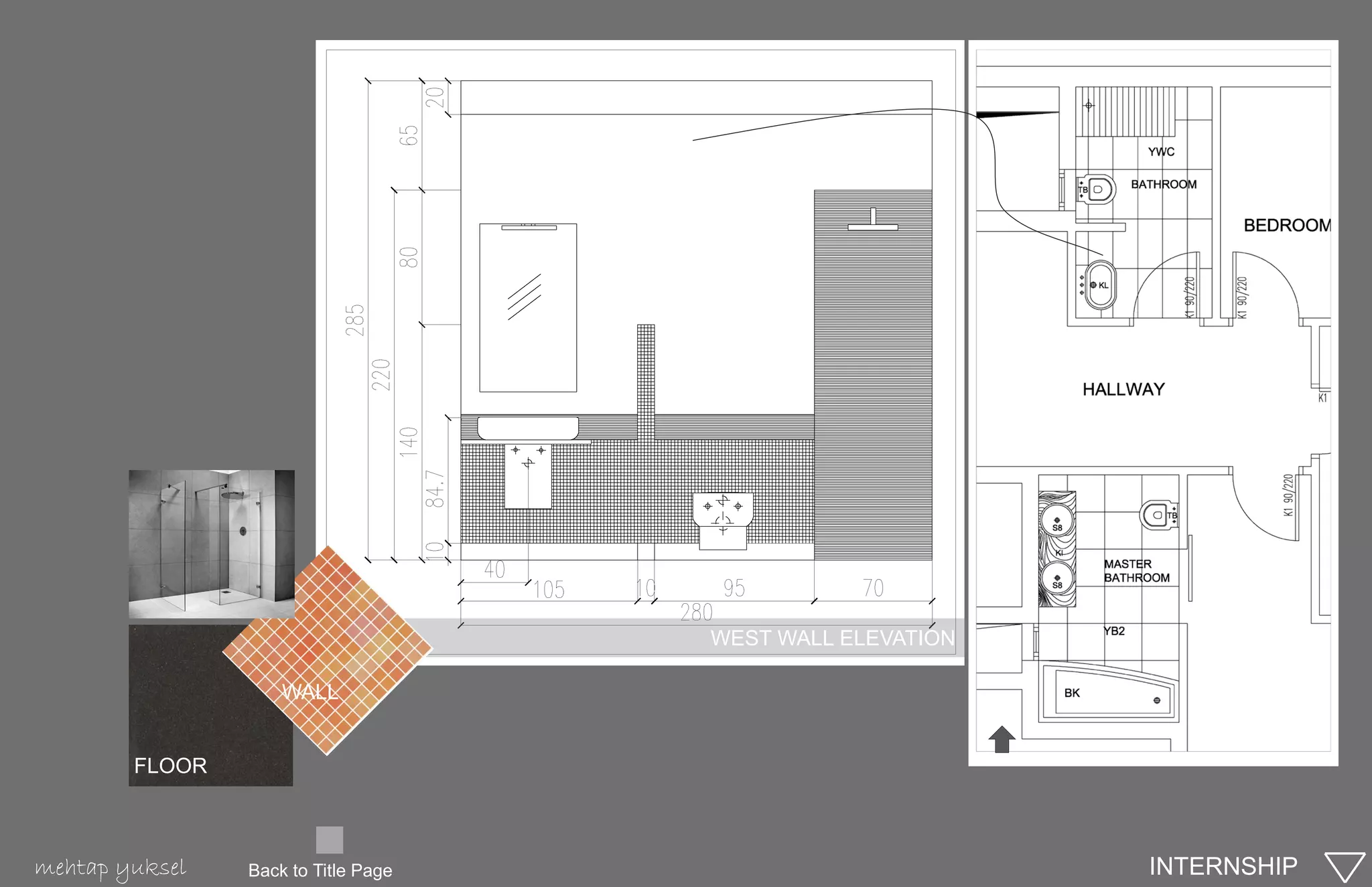
WEST WALL ELEVATION

                    WALL


        FLOOR



mehtap yuksel   Back to Title Page                         INTERNSHIP
WALL




                           FLOOR     WALL PAPER




                                                  WALL   FLOOR




mehtap yuksel   Back to Title Page                               INTERNSHIP
mehtap yuksel   Back to Title Page   INTERNSHIP
CARPET




mehtap yuksel   Back to Title Page            INTERNSHIP
KITCHEN WEST WALL ELEVATION




mehtap yuksel   Back to Title Page                                 INTERNSHIP
WALL          FLOOR




                                     SHOWER FLOOR




                                                    MASTER BATHROOM NORTH WALL ELEVATION



mehtap yuksel   Back to Title Page                                              INTERNSHIP
mehtap yuksel   Back to Title Page   INTERNSHIP
WALL                 FLOOR




mehtap yuksel          Back to Title Page    INTERNSHIP
WALL




           FLOOR


                                        WALL

                           CEILING
                           CLOUD


                                        FLOOR

                              FLOOR




           WALL




mehtap yuksel      Back to Title Page           INTERNSHIP
mehtap yuksel   Back to Contents Page   FROM THE HAND DRAWING ARCHIVE
mehtap yuksel   Back to Contents Page   FROM THE HAND DRAWING ARCHIVE
mehtap yuksel   Back to Contents Page   FROM THE HAND DRAWING ARCHIVE
Back to Contents Page   3D Rendering for an Office Space by SketchUp
Thank You

Mehtap Yuksel Portfolio

  • 1.
    MehtaP Yuksel DesigN PortfoliO DesigN PortfoliO MehtaP YukseL
  • 2.
    Portfolio Cover 1 Contents 2 Resume 3 Biography 4 Designer’s Perspective 5 Commercial Design 6-13 Advanced Residential Design Studio 14-20 Environmental Design 21-27 Construction Documents 28-39 Thesis Development 40-48 Internship 49-62 From the Archive 63-65 3D Space Planning 66 Contents
  • 3.
    WORK EXPERIENCE CAREER GOAL Interior Design Internship at CAG Architectural Workshop June 1-Sep 25, 2010 in Ankara, Turkey To obtain a position at an EDUCATION architectural design firm to experience the advanced skills and 2006-2010 Art Institute of Pittsburgh, Interior design, BS Program-CIDA creativity in commercial design with sustainable concerns 2005-2006 Art Institute of Pittsburgh, Residential Design Diploma ACHIEVEMENTS SKILLS Free hand drawing and rendering, AutoCAD LEED-NC Study Workshop at Kirksey, Houston, TX, 2009 (metric and imperial), Power Point, Excel, Gulf Coast Green, Student Competition, Houston, TX, 2009 Microsoft Word, Photoshop, 3DMax, and advanced teaching and presentation skills IIDA Student Sustainable Design Competition, 2010 ACADEMICAL DEGREES BS in Biology MS in Morphology PhD in Anatomy BS in Interior Design ASSOCIATIONS ASID since 2006 IIDA since 2008 Mehtap Yuksel Vanderbilt St. Houston, TX 77005 H (713) 589 3626 C (832) 766 3300 yukselgiller@gmail.com Resumé
  • 4.
    I was bornin Kastamonu, Turkey. Although I had always wanted to be a designer, my family culture said it could only be a hobby and I should have a real career first. I finished Biology and earned my master and doctorate degrees in Human Anatomy. I worked in medical schools as a faculty member and loved teaching, but I never ceased thinking about design. In my fifteen years of teaching and working in Anatomy, I drew illustrations for medical books and periodicals. In the meantime, I kept designing my home, my close friends’ and relatives’ homes, and offices where I have worked. It was a hobby as my family thought, but definitely not enough. Although I wish I could’ve started my design career earlier, I am so glad I finally went for my dream career and took Interior Design courses. I know that this is not only my dream, but the best thing I could do with my heart and soul. I know this is what I should do and will with an endless learning and creativity. This is what I love. Back to Contents Page Biography
  • 5.
    Design should bein an “original”, “innovative”, and “aesthetically appealing” way that increases the quality of life for “everybody” It should offer excitement as a result of aesthetics with functionality I believe that designers have profound responsibility to the life styles and qualities as well as to the future generations Back to Contents Page Designer’s Perspective
  • 6.
    Concept Plans Details Back to Contents Page Advanced Commercial Design Studio
  • 7.
    CONCEPT STATEMENT “Trackers” is an exclusive sporting goods retail company selling custom-made equipment for the serious runners. The store’s reputation in the athletic world is exceptional and clientele come from all over the world. The company recently bought the first floor of a building on Massachusetts Avenue, in the City of Cambridge, Boston. The frontal façade demonstrates significant historic features and it will be preserved according to the state’s and region’s historic preservation guidelines. By integrating old and new as much as shopping and sporting, new store targets to attract Boston’s runners. The concept is to impress the visitors with their futuristic open store space through an amazing historical façade. cONCEPT Back to Title Page Advanced Commercial Design Studio
  • 8.
    pLANS Back to Title Page Advanced Commercial Design Studio
  • 9.
    JUICE BAR pLANS Back to Title Page Advanced Commercial Design Studio
  • 10.
    pLANS Back to Title Page Advanced Commercial Design Studio
  • 11.
    dETAILS Back to Title Page Advanced Commercial Design Studio
  • 12.
    Cash/Wrap Counter FrontView Cash/Wrap Counter Back View dETAILS Back to Title Page Advanced Commercial Design Studio
  • 13.
    dETAILS Back to Title Page Advanced Commercial Design Studio
  • 14.
    Concept Plans Details Back to Contents Page Advanced Residential Design Studio
  • 15.
    DESIGN CONCEPT The Thornton family bought a newly constructed house in Chicago and they need to cooperate with a designer to enhance the existing architectural features in the foyer, living room, home-office, and home theater spaces. The Thornton House will be nesting to Mr. and Mrs. Thornton, their daughter, Alice, and Mrs. Thornton’s father, Mr. Craig. The family wants a formal look in their interiors that is not too feminine. Their existing furniture is Victorian style and they like to see the era all over the space. Our design team will use the design elements of Victorian era such as the crown medallions and crown moldings on ceilings, sash large panels of windows, door frames with the rosettes, floral patterns for the upholstery, and Victorian floor tiles. We don’t want the family to get overwhelmed with too much floral patterns, colors, crown moldings, and feminine elements around. They want an uncluttered, formal look in their house. So we aim to balance the used historical features with the use of plain velvets; painted walls instead of patterned wall papers and avoid using the patterned rugs on the floors. cONCEPT Back to Title Page Advanced Residential Design Studio
  • 16.
    pLANS Back to Title Page Advanced Residential Design Studio
  • 17.
    pLANS Back to Title Page Advanced Residential Design Studio
  • 18.
    dETAILS Back to Title Page Advanced Residential Design Studio
  • 19.
    Living Room andHome Theater West Wall Living Room East Wall dETAILS Back to Title Page Advanced Residential Design Studio
  • 20.
    dETAILS Back to Title Page Advanced Residential Design Studio
  • 21.
    Concept Plans Details Back to Contents Page Environmental Design
  • 22.
    DESIGN CONCEPT forXENO Xeno is a consulting firm for traditional clothing stores. The parent company is in the United States, and their main mission is to have a larger firm in Avignon, France. They dedicate themselves not only to keep their impact in France, but take it to higher levels through an eco-friendly building, and they aim to obtain at least a gold LEED-CI certificate with their building standards. The firm plans to invest $700,000.00 in a spectacular new office in Avignon, France. The project requires obtaining a LEED building standards with minimum of a gold certificate rating as its parent company in the United States. They want to keep being at the forefront of the sustainable building movement throughout their subsidiary companies. The design principles will address a functional, healthy, sustainable, and aesthetically appealing office environment meeting with the universal design standards. This project will be based on the “waste nothing”, “use free resources”, and “create a livable environment” principles of the sustainable design goals. The local resources, especially the beautiful Mediterranean sunlight, the wind from the Alps, and the abundant local water sources will be our main resources. cONCEPT Back to Title Page Environmental Design
  • 23.
    The goal of the project is to ensure that the building will earn Gold- certification level LEED CI credits pLANS Back to Title Page Environmental Design
  • 24.
    Site location closeto public transportation Alternative transportation (bicycle) As much daylight as possible through the transparent partitions, windows and skylights Fluorescent light fixtures with dimmers and occupancy sensors Light reflector colors Indoor Environmental Quality materials as well as low emitting, rapidly renewable materials, materials with no VOCs, reclaimed and recycled materials Clay paint-no VOCs Regional materials Open space planning for better IAQ Low flow toilets and faucets Irrigation by storm water and treated gray-water Energy Star Appliances Solar energy systems for heating and water- heating Rain water harvesting, wet-island, pervious concrete, sandbags for the drainage outlets Green roof pLANS Back to Title Page Environmental Design
  • 25.
    F1 Rondi Sofa2.13mWx0.83mDx 0.45mH F2 Slant table 0.4mDx1.11mWx0.43mH F3 Satellite Reception Desk 2175 mm Radius F4 Aside Chairs 0.43mD 0.57mWx 0.43mH F5 Ripple lounge seat 0.45mDx 0.88mW 0.45mH F6 Nigel sofa 80cmHx200cmWx60cmD F7 Pensi table 1.2mDx0.74mH F8 Steno chair/ CST 0.60mW X 0.60mD X 0.91mH F9 Aeron work chair 0.40mDx 0.48mWX0.44m seat H F10 Propeller training desk1.06 mDx0.6m- 0.76m H F11 R-pull freestanding pedestal 0.50mDx 0.37mW 0.69mH F12 Caper chair 0.43mDx0.61mWx 0.45mH F13 Propeller Training Table 0.91mD 1.99mW 0.73mH F14 Conference table Rectangular table 0.60mDx1.52mWx0.73mH Trapezoid table 0.60mDx1.91mR F15 Resolve Display Screen 0.91mWx 0.84mH F15a Resolve Display Screen1.52mWx 1.21mH F16 Resolve short pole 1.21m Hx0.3m D F16a Resolve tall pole 2.42mHx0.3m D F17 Boomerang Work Surface 0.63mD 1.21mW 0.55m-0.81mH (adjustable) F18 Extended boomerang work surface 0.63mDx 1.21mW 0.55m-0.81m HH F18a Extended boomerang work surface 0.63mDx 3.0m W 0.55m-0.81m H F19 Resolve Cabinet, Pole attached 0.43mD 0.37mW 1.21mH F20 Handkerchief Chair 0.58m W x 0.57m D x 0.73m H F21 Topo Work surface 1.77m W x 0.6m-0.81m” D x adjustable H F22 Topo credenza 1.42m W x1.5m D x 0.81mH pLANS Back to Title Page Environmental Design
  • 26.
    pLANS Back to Title Page Environmental Design
  • 27.
    Reused material from the old steel Recycled glass 40% recycled material-cardboard chairs Rapidly renewable material Green Planet Paints Aeron Chairs 100% recycled content Certified 21 to 26 points Silver 27 to 31 points Gold 32 to 41 points Points earned for “XENO” Project: 44 dETAILS Back to Title Page Environmental Design
  • 28.
    Concept Plans Details Back to Contents Page Construction Documents
  • 29.
    DESIGN STATEMENT (XENOADDITIONAL BUILDING) Xeno is a consulting firm for traditional clothing stores. The parent company is in the United States and their main mission was to have an addition to their larger firm in Avignon, France. The key to the project was in constructing the additions to this office space with the same design principles as previously addressed; a functional, healthy, sustainable, and aesthetically appealing office environment that meets with the universal design standards. The XENO has needed to add two main parts to the existing building as the public areas (Reception, Break Room, Source Room, and Restrooms) and the work spaces (Offices and Conference Room). The four executive offices were extended from the north façade of the building while the library and the conference room were located at the south façade. This way, the reception was relocated to the space between two secretary offices at the central north part of the space, welcoming visitors from the main entrance at the north side. The environment was the most important effect on the company and its employees, helping to revitalize the corporate cultures, hence, the new additions also have been designed with highest interior air quality as well as the highest possible level of daylight and beautiful view of Avignon. The water use has been reduced by using the ultra-low-flow toilets and faucets. All of the materials including the systems furniture have been selected as “sustainable”. The colors have been selected from the light tones to reflect as much day light as possible while all of the paints and finishes were VOC-free. The reception has been floored with reclaimed oak in its natural color and the majority of rest of the space has been floored by carpet in warm earth colors. All of the additional ceilings and walls have been in matte crème color. The furniture as well have been in warm natural colors like earth tones and crème that created a nice match with beautiful view of Avignon and various tones of brown and green, all around. Like all other design elements, lighting has been utilized based on the sustainable design principles. The space has been allocated to get as much daylight as possible through the abundant windows and the skylights while the fluorescent light fixtures and fluorescent down lights have been used for the ambient lighting. All of the design elements have been contemporary in style as this “eco-friendly” building has been designed as a futuristic model not only in regards to the sustainability, but also in aesthetic features and accessibility. cONCEPT Back to Title Page Construction Documents
  • 30.
    pLANS Back to Title Page Construction Documents
  • 31.
    pLANS Back to Title Page Construction Documents
  • 32.
    pLANS Back to Title Page Construction Documents
  • 33.
    pLANS Back to Title Page Construction Documents
  • 34.
    pLANS Back to Title Page Construction Documents
  • 35.
    pLANS Back to Title Page Construction Documents
  • 36.
    pLANS Back to Title Page Construction Documents
  • 37.
    dETAILS Back to Title Page Construction Documents
  • 38.
    dETAILS Back to Title Page Construction Documents
  • 39.
    dETAILS Back to Title Page Construction Documents
  • 40.
    Concept Plans Details Back to Contents Page Thesis Development
  • 41.
    CONCEPT STATEMENT “The LineaR represents a new design group that has been recently founded in Houston, Texas by two designers, Ray Lawson and Kelly Renshaw. They focus the Bauhaus design ideals as they believe it is time to put all basic design elements together such as the aesthetics, functionality, simplicity, quality, and originality with the combination of universal design principles and environmental concerns. Their main goal is to create interiors for the commercial and residential clients while creating new design products. They need three main groups to focus three different markets: commercial design, residential design, and product design. cONCEPT Back to Title Page Thesis Development
  • 42.
    pLANS Back to Title Page Thesis Development
  • 43.
    pLANS Back to Title Page Thesis Development
  • 44.
    pLANS Back to Title Page Thesis Development
  • 45.
    pLANS Back to Title Page Thesis Development
  • 46.
    pLANS Back to Title Page Thesis Development
  • 47.
    dETAILS Back to Title Page Thesis Development
  • 48.
    dETAILS Back to Title Page Thesis Development
  • 49.
    Concept Plans Details Back to Contents Page INTERNSHIP
  • 50.
    The internship project- MKB Ankara- has taken place in Ankara, Turkey between June 1, 2010 and September 23, 2010 at CAG AW (Celal Abdi Guzer Architectural Workshop) . Besides some other ongoing projects, this project was the most significant one showing the kitchen and bathroom designs of 28 apartment units including six terrace apartments with a total of seven different residential units. Given the opportunity to fulfill all of the kitchen and bathroom designs-as well as dressing rooms and entrances-, profound experience have been acquired in terms of the local materials, MEHTAP YÜKSEL manufacturers, client presentations, and ART INSTITUTE PITTSBURGH professional level of communication. Presented ID451 INTERNSHIP images have been selected from some of InstructoR: Sherri MangiN those housing units that Sep, 2010 have been designed with the same concept of CAG AW contemporary style as the MKB Ankara, TÜRKİYE owner of the company asked for. Supervisor: CelaL Abdi GüzeR Back to Title Page INTERNSHIP
  • 51.
    NORTH WALL ELEVATION mehtapyuksel Back to Title Page INTERNSHIP
  • 52.
    CEILING PLASTER mehtap yuksel Back to Title Page INTERNSHIP
  • 53.
    FACING TO KITCHENNORTH WALL mehtap yuksel Back to Title Page INTERNSHIP
  • 54.
    WEST WALL ELEVATION WALL FLOOR mehtap yuksel Back to Title Page INTERNSHIP
  • 55.
    WALL FLOOR WALL PAPER WALL FLOOR mehtap yuksel Back to Title Page INTERNSHIP
  • 56.
    mehtap yuksel Back to Title Page INTERNSHIP
  • 57.
    CARPET mehtap yuksel Back to Title Page INTERNSHIP
  • 58.
    KITCHEN WEST WALLELEVATION mehtap yuksel Back to Title Page INTERNSHIP
  • 59.
    WALL FLOOR SHOWER FLOOR MASTER BATHROOM NORTH WALL ELEVATION mehtap yuksel Back to Title Page INTERNSHIP
  • 60.
    mehtap yuksel Back to Title Page INTERNSHIP
  • 61.
    WALL FLOOR mehtap yuksel Back to Title Page INTERNSHIP
  • 62.
    WALL FLOOR WALL CEILING CLOUD FLOOR FLOOR WALL mehtap yuksel Back to Title Page INTERNSHIP
  • 63.
    mehtap yuksel Back to Contents Page FROM THE HAND DRAWING ARCHIVE
  • 64.
    mehtap yuksel Back to Contents Page FROM THE HAND DRAWING ARCHIVE
  • 65.
    mehtap yuksel Back to Contents Page FROM THE HAND DRAWING ARCHIVE
  • 66.
    Back to ContentsPage 3D Rendering for an Office Space by SketchUp
  • 67.