CITY OF ALAMO HEIGHTS
COMMUNITY DEVELOPMENT SERVICES DEPARTMENT
CITY COUNCIL AGENDA MEMORANDUM
TO: Mayor and City Council Members
FROM: Lety Hernandez, Director of Community Development Services
SUBJECT: Case No. 888F – 235 Argyle
Request of Craig McMahon of Craig McMahon Architects, Inc., applicant, representing
Jeff & Lisa Rosenbloom, owners, for the compatibility review of the proposed design
located at 235 Argyle in order to construct a 2-story detached garage under Demolition
Review Ordinance No. 1860 (April 12, 2010).
DATE: November 14, 2022
BACKGROUND INFORMATION
The property is zoned SF-A and is located on north side of Argyle between Morton St and
Patterson Ave.
A 2nd
story addition is proposed to an existing one-story garage. The existing detached garage
exceeds current looming standards but the proposed addition complies with current regulations
and does not cause any increases in existing non-conformities. The first floor consists of the
required two (2) covered parking spaces.
POLICY ANALYSIS
Bonus Utilized
+4 – Preservation of fifty (50) percent of main structure
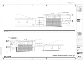
 Garage – Detached (2-story)
o Height – 20ft
o Siding – Paint Grip or Copper Siding (pending owner approval) with Saltillo tile
o Roof – TPO or Standing Seam Paint Grip
 Chapter 5 – Buildings and Building Regulation, Article IX. – Demolition
Two-story detached accessory structures intended to replace previously permitted demolitions of
exempt accessory structures shall be governed by demolition review regarding compatibility
regardless of whether any significance determination was reviewed under Demolition Review
Procedures per Section 5-134(b)(1).
On October 18, 2022 Architectural Review Board considered the compatibility request and voted
unanimously to recommend approval of the proposed design as compatible.
FISCAL IMPACT
No projected fiscal impact from this project has been calculated.
ATTACHMENTS
Attachment A – Web Packet
Attachment B – Response Cards
__________________________
Lety Hernandez
Director
__________________________
Buddy Kuhn
City Manager
Attachment A
Attachment A
Attachment A
Attachment A
Attachment A
Attachment A
Attachment A
Attachment A
Attachment A
Attachment A
Attachment A
Attachment A
Attachment A
Attachment A
Attachment A
Attachment B
Attachment B

Item # 5 - 235 Argyle (Compatibility - Accessory Only)

  • 1.
    CITY OF ALAMOHEIGHTS COMMUNITY DEVELOPMENT SERVICES DEPARTMENT CITY COUNCIL AGENDA MEMORANDUM TO: Mayor and City Council Members FROM: Lety Hernandez, Director of Community Development Services SUBJECT: Case No. 888F – 235 Argyle Request of Craig McMahon of Craig McMahon Architects, Inc., applicant, representing Jeff & Lisa Rosenbloom, owners, for the compatibility review of the proposed design located at 235 Argyle in order to construct a 2-story detached garage under Demolition Review Ordinance No. 1860 (April 12, 2010). DATE: November 14, 2022 BACKGROUND INFORMATION The property is zoned SF-A and is located on north side of Argyle between Morton St and Patterson Ave. A 2nd story addition is proposed to an existing one-story garage. The existing detached garage exceeds current looming standards but the proposed addition complies with current regulations and does not cause any increases in existing non-conformities. The first floor consists of the required two (2) covered parking spaces.
  • 2.
    POLICY ANALYSIS Bonus Utilized +4– Preservation of fifty (50) percent of main structure  Garage – Detached (2-story) o Height – 20ft o Siding – Paint Grip or Copper Siding (pending owner approval) with Saltillo tile o Roof – TPO or Standing Seam Paint Grip  Chapter 5 – Buildings and Building Regulation, Article IX. – Demolition Two-story detached accessory structures intended to replace previously permitted demolitions of exempt accessory structures shall be governed by demolition review regarding compatibility regardless of whether any significance determination was reviewed under Demolition Review Procedures per Section 5-134(b)(1).
  • 3.
    On October 18,2022 Architectural Review Board considered the compatibility request and voted unanimously to recommend approval of the proposed design as compatible. FISCAL IMPACT No projected fiscal impact from this project has been calculated. ATTACHMENTS Attachment A – Web Packet Attachment B – Response Cards __________________________ Lety Hernandez Director __________________________ Buddy Kuhn City Manager
  • 4.
  • 5.
  • 6.
  • 7.
  • 8.
  • 9.
  • 10.
  • 11.
  • 12.
  • 13.
  • 14.
  • 15.
  • 16.
  • 17.
  • 18.
  • 19.
  • 20.