Embed presentation
Download to read offline











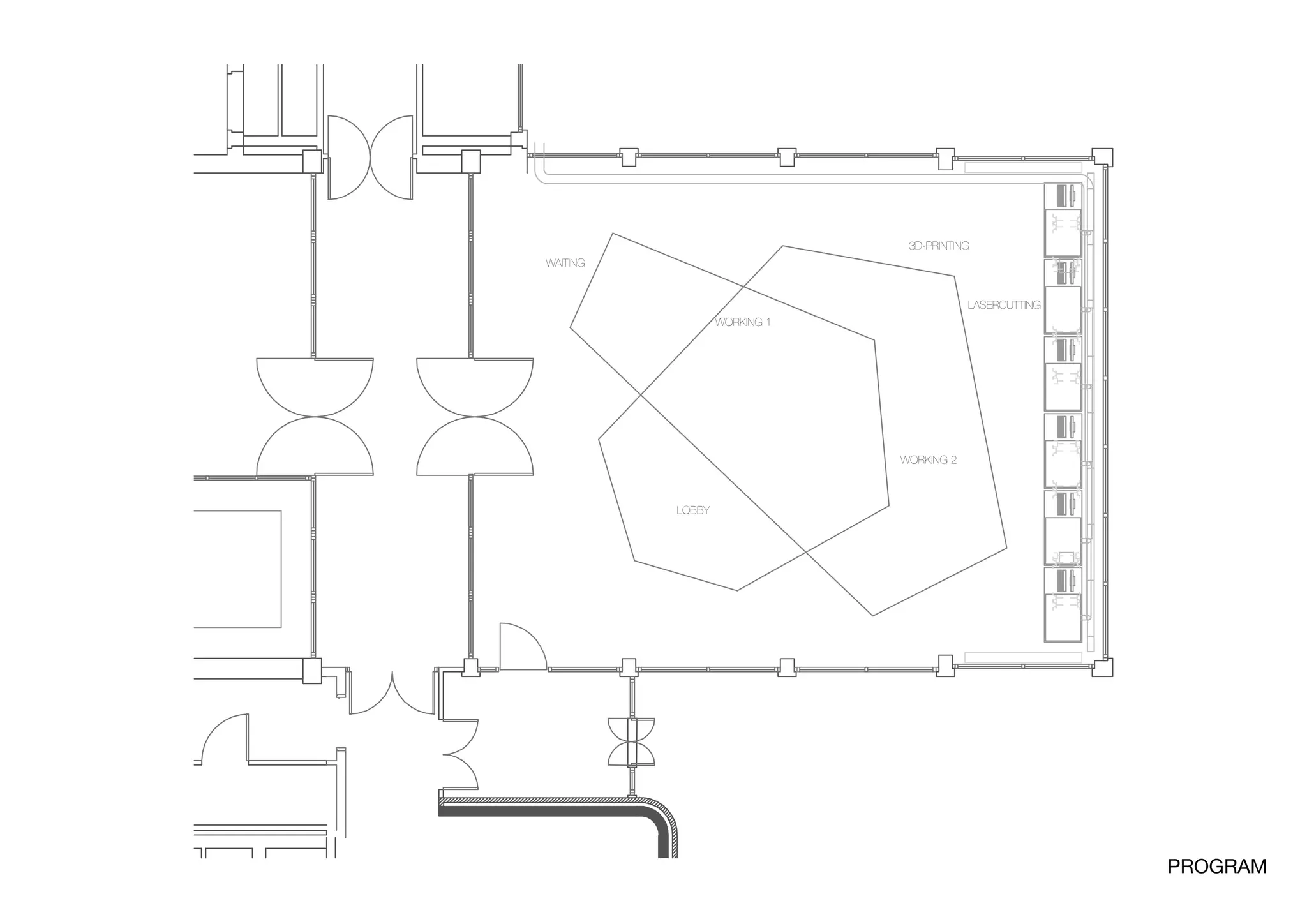
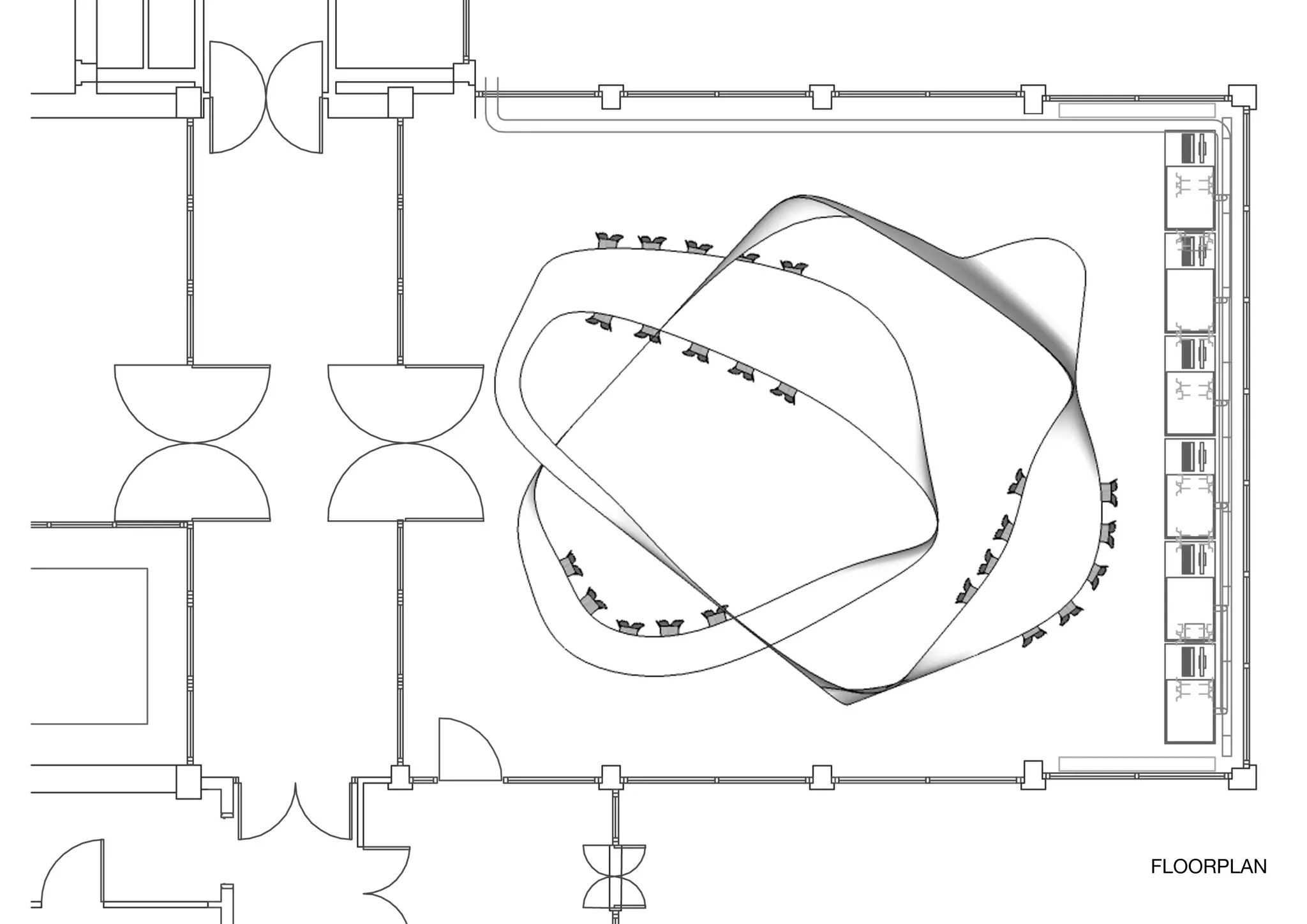
The document discusses the design of a fablab space with an infinity wall forming a singular boundary, certain independent yet interdependent areas, and a blurred inside-outside division. It references concepts like a spiral intertwining coil, 3D printing, laser cutting, and an evolution involving honeycomb construction, sliced wood, and a single bent surface. Floorplans and facades are also mentioned.










