Embed presentation
Download to read offline











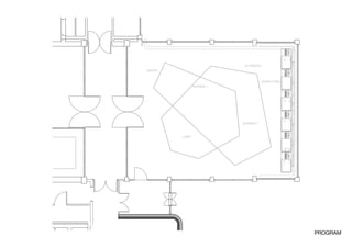
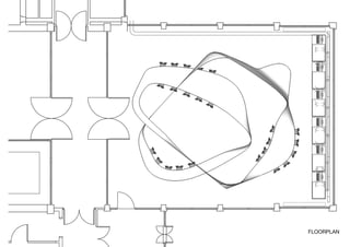
The document discusses the design of a fablab space with an infinity wall forming a singular boundary, certain independent yet interdependent areas, and a blurred divide between indoor and outdoor spaces. It references concepts like a spiral, intertwining coil, 3D printing, laser cutting, and different working and lobby areas. The proposed construction includes ordinary timber, honeycomb structures, sliced wood, and a single bent surface, with mentions of floorplans, facades, and an evolutionary approach.










