СМ Червячные редукторы
TRANSTECNO
Технические характеристики
Редукторы типоразмеров 030, 040, 050, 063, 075 и 090 имеют алюминиевый корпус, большие размеры – корпус
из литейного чугуна
Типоразмеры 030, 040, 050 и 063 поставляются залитые синтетическим маслом (коэф. вязкости 320),
остальные – минеральным маслом (коэф. вязкости 460).
Типоразмеры 075, 090, 110 и 130 дополнительно снабжены коническими роликоподшипниками на червяке
Маркировка
РЕДУКТОР ДВИГАТЕЛЬ
С
М
50 FD 20
P7
1
B5 B3 71B4 B5
230/40
0
50 Hz T1
Тип
Type
Размер
Size
Версия
Version
Передат.
число
Ratio
IEC Входной
фланец
Version
Положение
монтажа
Mounting
position
Размер Фланец
Version
Напряжение
Voltage
Частота
Frequency
Положение
клемной
коробки
Terminal box
position
СМ 030
040
050
063
075
090
110
130
U
FD
FS
FBD
FBS
FLD
FLS
См.
таблиц
у
56
…
132
В5
В14
B3
B6
B7
B8
V5
V6
56
…
132
B5
B14
- 50 Hz
60 Hz
T1
T2
T3
T4
Версии
Редукторы серии СМ выпускаются в 4 версиях
Обозначения
n1 [min-1] Входная скорость / Input speed
n2 [min-1] Выходная скорость / Output speed
i Передаточное число / Ratio
P1 [kW] Входная мощность / Input power
Mn [Nm] Номинальный выходной момент / Nominal output
torque
M2 [Nm] Выходной момент соответствующий P1 / Output torque
referred to P1
sf Сервис фактор / Service factor
Rd % Динамический к.п.д. / Dynamic efficiency
Rs % Статический к.п.д. / Static efficiency
R2 [N] Допустимая выходная радиальная нагрузка / Permitted output
radial load
СМЧервячные редукторы
TRANSTECNO
Характеристики передач зацепления
Передаточное число / RatioПараметры
червяка
Worm wheel data 7.5 10 15 20 25 30 40 50 60 80 100
Mx 1.44 1.44 1.44 1.1 1.7 1.44 1.1 0.89 0.74 0.56
Z 4 3 2 2 1 1 1 1 1 1
β 18°55' 14°25' 9°44' 7°49' 5°33' 4°54' 3°55' 3°17' 2°43' 2°07'
Rd (1400min
-1
) 83 82 77 73 68 66 59 55 52 45
CM030
Rs 66 64 55 51 41 39 33 30 26 22
Mx 2.05 2.05 2.05 1.56 1.27 2.05 1.56 1.27 1.06 0.8 0.65
Z 4 3 2 2 2 1 1 1 1 1 1
β 23°54' 18°23' 12°30' 10°03' 8°45' 6°19' 5°04' 4°24' 3°42' 2°52' 2°29'
Rd (1400min
-1
) 86 84 81 77 71 68 65 63 58 55 47
CM040
s 70 65 59 54 50 45 40 35 30 26 21
Mx 2.56 2.56 2.56 1.95 1.58 2.56 1.95 1.58 1.32 1 0.8
Z 4 3 2 2 2 1 1 1 1 1 1
β 23°49' 18°19' 12°27' 10°03' 8°33' 6°18' 5°04' 4°18' 3°38' 2°52' 2°17'
Rd (1400min
-1
) 86 84 81 78 75 71 67 63 58 52 47
CM050
Rs 69 65 59 55 50 43 38 34 31 25 21
Mx 3.25 3.25 3.25 2.48 2 3.25 2.48 2 1.68 1.27 1.02
Z 4 3 2 2 2 1 1 1 1 1 1
β 24°31' 18°53' 12°51' 10°29' 8°45' 6°30' 5°17' 4°24' 3°49' 2°59' 2°26'
Rd (1400min
-1
) 87 85 82 80 77 73 69 66 60 55 50
CM063
Rs 70 65 58 55 50 44 40 35 31 26 22
Mx 3.95 3.95 3.95 3 2.42 3.95 3 2.42 2.02 1.54 1.24
Z 4 3 2 2 2 1 1 1 1 1 1
β 26°38' 20°37' 14°05' 11°19' 9°29' 7°09' 5°43' 4°46' 4°01' 3°17' 2°44'
Rd (1400min
-1
) 88 86 83 80 78 74 70 67 63 58 53
CM075
Rs 71 68 60 56 51 44 40 35 32 26 23
Mx 4.84 4.84 4.84 3.69 2.98 4.84 3.69 2.98 2.5 1.89 1.52
Z 4 3 2 2 2 1 1 1 1 1 1
β 29°05' 22°39' 15°33' 12°50' 10°53' 7°55' 6°30' 5°29' 4°46' 3°45' 3°06'
Rd (1400min
-1
) 88 87 84 83 81 75 74 72 69 63 58
CM090
Rs 72 70 63 59 55 47 43 41 38 31 25
Mx 5.875 5.875 5.875 4.62 3.73 5.875 4.62 3.73 3.13 2.37 1.91
Z 4 3 2 2 2 1 1 1 1 1 1
β 28°15' 21°57' 15°02' 14°42' 12°33' 7°39' 7°29' 6°21' 5°33' 4°27' 3°39'
Rd (1400min
-1
) 89 87 84 84 83 77 76 74 72 66 62
CM110
Rs 71 68 61 60 58 46 45 42 41 35 26
Mx 6.97 6.97 6.97 5.4 4.37 6.97 5.4 4.37 3.67 2.77 2.23
Z 4 3 2 2 2 1 1 1 1 1 1
β 28°43' 22°20' 15°19' 13°47' 11°54' 7°48' 7°00' 6°01' 5°16' 4°08' 3°27'
Rd (1400min
-1
) 89 88 86 84 83 79 76 76 73 71 64
CM130
Rs 72 70 62 60 57 47 45 41 37 32 28
Смазка
Редукторы типоразмеров СМ030 – СМ090 поставляются со смазкой и готовы к применению
Редукторы типоразмеров СМ110 и СМ130 поставляются без масла, поэтому перед применением, в них следует
залить соответствующее количество масла (См. Таблицу ниже)
Рекомендуемые масла / Suggested lubricants
IP SHELL AGIP ESSO MOBIL CASTROL BP
CM030 - CM090 Telium VSF
Tivela Oil
SC320
Blasia S320 S320 Glygoyle 30
Alphasyn
PG320
Energol
SG-XP320
CM110 - CM130 Mellana Oil Omala Oil 320 Blasia 320 — Mobil Gear 320 — —
СМ Червячные редукторы
TRANSTECNO
Положения монтажа
Положения монтажа
Типоразмеры с CM30 до CM90 не требуют никакого обслуживания.
Типоразмеры с CM110 до CM130 - первая замена масла через 400 часов, в дальнейшем каждые 4000 часов.
Количество масла (литров) / Oil quantity (liters)
B3 B8 B6 B7 V5 V6
CM030 0.04
CM040 0.08
CM050 0.15
CM063 0.30
CM075 0.55
CM090 1.0
Смазка залита
на весь срок
эксплуатации
Life lubricated
CM110 3.0 2.2 2.5 2.5 3.0 3.0
CM130 4.5 3.3 3.5 3.5 4.5 4.5
Радиальные нагрузки
R2 [N]
n2 [min
-1
] CM030 CM040 CM050 CM063 CM075 CM090 CM110 CM130
187 770 1000 1340 1380 1860 2360 2850 3800
140 820 1100 1520 1760 2470 2520 2990 4040
93 880 1260 1700 1830 2830 2620 3420 4560
70 990 1420 1940 2030 3250 2780 3940 5030
56 1040 1570 2200 2260 3460 3740 4610 6270
47 1080 1630 2270 2290 3620 3930 4940 6650
35 1100 1680 2340 2410 3880 4040 5410 7120
28 1180 1780 2520 2620 4090 4620 5890 7790
23 1240 1890 2710 2830 4300 4850 6270 8310
18 1410 2200 2990 3250 4670 5770 7410 9780
14 1570 2410 3360 3460 4930 6090 7840 10160
СМЧервячные редукторы
TRANSTECNO
Технические характеристики
СМ Червячные редукторы
TRANSTECNO
Технические характеристики
СМЧервячные редукторы
TRANSTECNO
Технические характеристики
СМ Червячные редукторы
TRANSTECNO
Адаптер двигателя IEC
i
IEC N M P D
7.5 10 15 20 25 30 40 50 60 80 100
63B5 95 115 140
63B14 60 75 90
11
56B5 80 100 120
CM030
56B14 50 65 80
9 B B B B B B B B
71B5 110 130 160
71B14 70 85 105
14
63B5 95 115 140
63B14 60 75 90
11 B B B B B B B
CM040
56B5 80 100 120 9 BS BS BS BS BS BS BS B B B B
80B5 130 165 200
80B14 80 100 120
19
71B5 110 130 160
71B14 70 85 105
14 B B B B B B
CM050
63B5 95 115 140 11 BS BS BS BS BS BS B B B B
90B5 130 165 200
90B14 95 115 140
24
80B5 130 165 200
80B14 80 100 120
19 B B B B B B
71B5 110 130 160
CM063
71B14 70 85 105
14 BS BS BS BS BS BS B B B
100/112B5 180 215 250
100/112B14 110 130 160
28
90B5 130 165 200
90B14 95 115 140
24 B B B
80B5 130 165 200
80B14 80 100 120
19 BS BS BS B B B B
CM075
71B5 110 130 160 14 BS BS BS BS B B B B
100/112B5 180 215 250
100/112B14 110 130 160
28
90B5 130 165 200
90B14 95 115 140
24 B B B B B B
80B5 130 165 200
CM090
80B14 80 100 120
19 BS BS BS BS BS BS B B B
132B5 230 265 300 38
100/112B5 180 215 250 28 B B B B
90B5 130 165 200 24 BS BS BS BS B B B B B
CM110
80B5 130 165 200 19 BS BS BS BS BS B B
132B5 230 265 300 38
100/112B5 180 215 250 28 B B B B B B BCM130
90B5 130 165 200 24 BS BS BS BS BS BS BS B B B B
Серый цвет указывает на
наличие отверстия для вала
двигателя
B/BS – металлическая
гильза на вал двигателя
СМЧервячные редукторы
TRANSTECNO
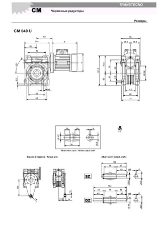
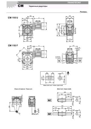
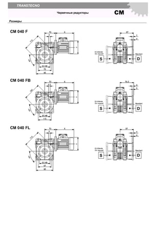
Размеры
СМ Червячные редукторы
TRANSTECNO
Размеры
СМЧервячные редукторы
TRANSTECNO
Размеры
СМ Червячные редукторы
TRANSTECNO
Размеры
СМЧервячные редукторы
TRANSTECNO
Размеры
СМ Червячные редукторы
TRANSTECNO
Размеры
СМЧервячные редукторы
TRANSTECNO
Размеры
СМ Червячные редукторы
TRANSTECNO
Размеры
СМЧервячные редукторы
TRANSTECNO
Размеры
СМ Червячные редукторы
TRANSTECNO
Размеры
СМЧервячные редукторы
TRANSTECNO
Размеры
СМ Червячные редукторы
TRANSTECNO
Входной вал
Крышка

Cm серия Transtecno

  • 1.
    СМ Червячные редукторы TRANSTECNO Техническиехарактеристики Редукторы типоразмеров 030, 040, 050, 063, 075 и 090 имеют алюминиевый корпус, большие размеры – корпус из литейного чугуна Типоразмеры 030, 040, 050 и 063 поставляются залитые синтетическим маслом (коэф. вязкости 320), остальные – минеральным маслом (коэф. вязкости 460). Типоразмеры 075, 090, 110 и 130 дополнительно снабжены коническими роликоподшипниками на червяке Маркировка РЕДУКТОР ДВИГАТЕЛЬ С М 50 FD 20 P7 1 B5 B3 71B4 B5 230/40 0 50 Hz T1 Тип Type Размер Size Версия Version Передат. число Ratio IEC Входной фланец Version Положение монтажа Mounting position Размер Фланец Version Напряжение Voltage Частота Frequency Положение клемной коробки Terminal box position СМ 030 040 050 063 075 090 110 130 U FD FS FBD FBS FLD FLS См. таблиц у 56 … 132 В5 В14 B3 B6 B7 B8 V5 V6 56 … 132 B5 B14 - 50 Hz 60 Hz T1 T2 T3 T4 Версии Редукторы серии СМ выпускаются в 4 версиях Обозначения n1 [min-1] Входная скорость / Input speed n2 [min-1] Выходная скорость / Output speed i Передаточное число / Ratio P1 [kW] Входная мощность / Input power Mn [Nm] Номинальный выходной момент / Nominal output torque M2 [Nm] Выходной момент соответствующий P1 / Output torque referred to P1 sf Сервис фактор / Service factor Rd % Динамический к.п.д. / Dynamic efficiency Rs % Статический к.п.д. / Static efficiency R2 [N] Допустимая выходная радиальная нагрузка / Permitted output radial load
  • 2.
    СМЧервячные редукторы TRANSTECNO Характеристики передачзацепления Передаточное число / RatioПараметры червяка Worm wheel data 7.5 10 15 20 25 30 40 50 60 80 100 Mx 1.44 1.44 1.44 1.1 1.7 1.44 1.1 0.89 0.74 0.56 Z 4 3 2 2 1 1 1 1 1 1 β 18°55' 14°25' 9°44' 7°49' 5°33' 4°54' 3°55' 3°17' 2°43' 2°07' Rd (1400min -1 ) 83 82 77 73 68 66 59 55 52 45 CM030 Rs 66 64 55 51 41 39 33 30 26 22 Mx 2.05 2.05 2.05 1.56 1.27 2.05 1.56 1.27 1.06 0.8 0.65 Z 4 3 2 2 2 1 1 1 1 1 1 β 23°54' 18°23' 12°30' 10°03' 8°45' 6°19' 5°04' 4°24' 3°42' 2°52' 2°29' Rd (1400min -1 ) 86 84 81 77 71 68 65 63 58 55 47 CM040 s 70 65 59 54 50 45 40 35 30 26 21 Mx 2.56 2.56 2.56 1.95 1.58 2.56 1.95 1.58 1.32 1 0.8 Z 4 3 2 2 2 1 1 1 1 1 1 β 23°49' 18°19' 12°27' 10°03' 8°33' 6°18' 5°04' 4°18' 3°38' 2°52' 2°17' Rd (1400min -1 ) 86 84 81 78 75 71 67 63 58 52 47 CM050 Rs 69 65 59 55 50 43 38 34 31 25 21 Mx 3.25 3.25 3.25 2.48 2 3.25 2.48 2 1.68 1.27 1.02 Z 4 3 2 2 2 1 1 1 1 1 1 β 24°31' 18°53' 12°51' 10°29' 8°45' 6°30' 5°17' 4°24' 3°49' 2°59' 2°26' Rd (1400min -1 ) 87 85 82 80 77 73 69 66 60 55 50 CM063 Rs 70 65 58 55 50 44 40 35 31 26 22 Mx 3.95 3.95 3.95 3 2.42 3.95 3 2.42 2.02 1.54 1.24 Z 4 3 2 2 2 1 1 1 1 1 1 β 26°38' 20°37' 14°05' 11°19' 9°29' 7°09' 5°43' 4°46' 4°01' 3°17' 2°44' Rd (1400min -1 ) 88 86 83 80 78 74 70 67 63 58 53 CM075 Rs 71 68 60 56 51 44 40 35 32 26 23 Mx 4.84 4.84 4.84 3.69 2.98 4.84 3.69 2.98 2.5 1.89 1.52 Z 4 3 2 2 2 1 1 1 1 1 1 β 29°05' 22°39' 15°33' 12°50' 10°53' 7°55' 6°30' 5°29' 4°46' 3°45' 3°06' Rd (1400min -1 ) 88 87 84 83 81 75 74 72 69 63 58 CM090 Rs 72 70 63 59 55 47 43 41 38 31 25 Mx 5.875 5.875 5.875 4.62 3.73 5.875 4.62 3.73 3.13 2.37 1.91 Z 4 3 2 2 2 1 1 1 1 1 1 β 28°15' 21°57' 15°02' 14°42' 12°33' 7°39' 7°29' 6°21' 5°33' 4°27' 3°39' Rd (1400min -1 ) 89 87 84 84 83 77 76 74 72 66 62 CM110 Rs 71 68 61 60 58 46 45 42 41 35 26 Mx 6.97 6.97 6.97 5.4 4.37 6.97 5.4 4.37 3.67 2.77 2.23 Z 4 3 2 2 2 1 1 1 1 1 1 β 28°43' 22°20' 15°19' 13°47' 11°54' 7°48' 7°00' 6°01' 5°16' 4°08' 3°27' Rd (1400min -1 ) 89 88 86 84 83 79 76 76 73 71 64 CM130 Rs 72 70 62 60 57 47 45 41 37 32 28 Смазка Редукторы типоразмеров СМ030 – СМ090 поставляются со смазкой и готовы к применению Редукторы типоразмеров СМ110 и СМ130 поставляются без масла, поэтому перед применением, в них следует залить соответствующее количество масла (См. Таблицу ниже) Рекомендуемые масла / Suggested lubricants IP SHELL AGIP ESSO MOBIL CASTROL BP CM030 - CM090 Telium VSF Tivela Oil SC320 Blasia S320 S320 Glygoyle 30 Alphasyn PG320 Energol SG-XP320 CM110 - CM130 Mellana Oil Omala Oil 320 Blasia 320 — Mobil Gear 320 — —
  • 3.
    СМ Червячные редукторы TRANSTECNO Положениямонтажа Положения монтажа Типоразмеры с CM30 до CM90 не требуют никакого обслуживания. Типоразмеры с CM110 до CM130 - первая замена масла через 400 часов, в дальнейшем каждые 4000 часов. Количество масла (литров) / Oil quantity (liters) B3 B8 B6 B7 V5 V6 CM030 0.04 CM040 0.08 CM050 0.15 CM063 0.30 CM075 0.55 CM090 1.0 Смазка залита на весь срок эксплуатации Life lubricated CM110 3.0 2.2 2.5 2.5 3.0 3.0 CM130 4.5 3.3 3.5 3.5 4.5 4.5 Радиальные нагрузки R2 [N] n2 [min -1 ] CM030 CM040 CM050 CM063 CM075 CM090 CM110 CM130 187 770 1000 1340 1380 1860 2360 2850 3800 140 820 1100 1520 1760 2470 2520 2990 4040 93 880 1260 1700 1830 2830 2620 3420 4560 70 990 1420 1940 2030 3250 2780 3940 5030 56 1040 1570 2200 2260 3460 3740 4610 6270 47 1080 1630 2270 2290 3620 3930 4940 6650 35 1100 1680 2340 2410 3880 4040 5410 7120 28 1180 1780 2520 2620 4090 4620 5890 7790 23 1240 1890 2710 2830 4300 4850 6270 8310 18 1410 2200 2990 3250 4670 5770 7410 9780 14 1570 2410 3360 3460 4930 6090 7840 10160
  • 4.
  • 5.
  • 6.
  • 7.
    СМ Червячные редукторы TRANSTECNO Адаптердвигателя IEC i IEC N M P D 7.5 10 15 20 25 30 40 50 60 80 100 63B5 95 115 140 63B14 60 75 90 11 56B5 80 100 120 CM030 56B14 50 65 80 9 B B B B B B B B 71B5 110 130 160 71B14 70 85 105 14 63B5 95 115 140 63B14 60 75 90 11 B B B B B B B CM040 56B5 80 100 120 9 BS BS BS BS BS BS BS B B B B 80B5 130 165 200 80B14 80 100 120 19 71B5 110 130 160 71B14 70 85 105 14 B B B B B B CM050 63B5 95 115 140 11 BS BS BS BS BS BS B B B B 90B5 130 165 200 90B14 95 115 140 24 80B5 130 165 200 80B14 80 100 120 19 B B B B B B 71B5 110 130 160 CM063 71B14 70 85 105 14 BS BS BS BS BS BS B B B 100/112B5 180 215 250 100/112B14 110 130 160 28 90B5 130 165 200 90B14 95 115 140 24 B B B 80B5 130 165 200 80B14 80 100 120 19 BS BS BS B B B B CM075 71B5 110 130 160 14 BS BS BS BS B B B B 100/112B5 180 215 250 100/112B14 110 130 160 28 90B5 130 165 200 90B14 95 115 140 24 B B B B B B 80B5 130 165 200 CM090 80B14 80 100 120 19 BS BS BS BS BS BS B B B 132B5 230 265 300 38 100/112B5 180 215 250 28 B B B B 90B5 130 165 200 24 BS BS BS BS B B B B B CM110 80B5 130 165 200 19 BS BS BS BS BS B B 132B5 230 265 300 38 100/112B5 180 215 250 28 B B B B B B BCM130 90B5 130 165 200 24 BS BS BS BS BS BS BS B B B B Серый цвет указывает на наличие отверстия для вала двигателя B/BS – металлическая гильза на вал двигателя
  • 8.
  • 9.
  • 10.
  • 11.
  • 12.
  • 13.
  • 14.
  • 15.
  • 16.
  • 17.
  • 18.
  • 19.