Ankita
enter
Goyal
Portfolio...
Academic.
Professional
Thesis...
Training...
CONTENTS....
CONTENTS....
DPRFORNANITAL
SUNTEMPLECOMPLEX-KONARK
HOUSINGATDWARKA
CAFETTERIAATRIMTCAMPUS
RVNL-LOCOSHEDDESIGN
HHECCOMPLEX
IITROPARDENTALHOSPITAL
HOUSING-MOHALI
INTERNATIONALCENTREFORHIGHESTBUDDHISTSTUDIES
DPRFORSALIM CHISTIDARGAH
WORKINGDRAWING
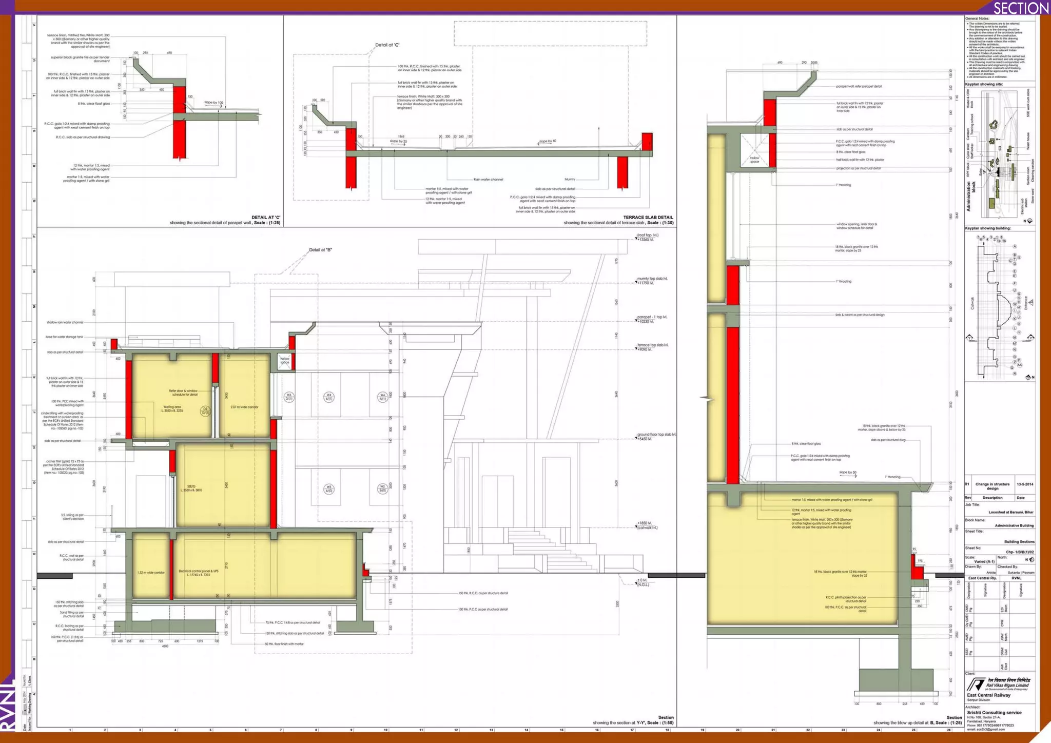
LOCOSHEDATBARAUNI,BIHAR
Client
Startdate
Enddate
Projectcost
Projectdescription
Scopeofwork
RailVikasNigam Limited
March,2012
March,2016
118Crores
TheshedwastheneedofthehourforECRforpropermaintenanceoflocomotives.Atpresent,theECRisforcedtosenditsdiesel
locomotivestoSiliguriforevenroutinemaintenance.TheshedatGarharawouldenabletheECRtosenditsdiesellocomotivesfor
theirmaintenanceworkintime,alsoitwouldalsosaverailwayrevenue.theirmaintenanceworkintime,alsoitwouldalsosaverailwayrevenue.
Theshedwillhavean:
Administrativeblock,Sectionroom,Trainingschool,Restrooms,Stafflockerroom,Canteen,Storeward,Residencesforbothrailway
officialsandstaffoftheshed.
ArchitecturalDrawing,WorkingDrawing,Plumbing,Landscaping
Estimation
SiteVisit
•Frontelevation :AdministrativeBuilding
BuiltUpArea :2367sq.mt.
No.offloors :G+2
•ViewofAdministrativebuilding
•ViewofCanteenblock
•ViewofMainshed
•ViewofResidentialquarterII
•AdministrativeBuilding:Constructionof
semibasement
•AdministrativeBuilding:Backsideview
towardsmainshed
•AdministrativeBuilding:Constructionof
semibasement
•SectionRoom :Constructiondetail •StoreRoom :Columndetail
•AdministrativeBuilding:Roof•AdministrativeBuilding:Entranceporch
detail
•AdministrativeBuilding:Entranceporch
flowerbeddetail
WORKINGDRAWING
FLOORPLANS
FLOORPLANS
SECTION
WORKINGDRAWING
WazooTank
•ArchitecturalDocumentation
•ConditionAssessment&Analysis
•ProposalforRestorationofInnerSide
•ProposalforRestorationofOuterSide
&DesignofSupportingFacility
TombofSaintSalimChistiJi
•ArchitecturalDocumentation
•ConditionAssessment&Analysis
•ProposalforRestoration
FormulationofStrategyfor
FlooringRestoration
•ArchitecturalDocumentation&Analysis
•ProposedPhases-RestorationofFloor
InfrastructureDevelopment
•DrinkingWaterPoint
•Signages
•ShoeRack
DETAILPROJECTREPORTFORRESTORATIONANDINFRASTRUCTUREDEVELOPMENTOFSALIMCHISTIDARGAHCOMPLEX
Client
Owner
Startdate
Enddate
Projectdescription
TheTomb-StructureAnalysis&ItsRestoration
Smt.UttaradeviCharitable&ResearchFoundation
ArcheologicalsurveyofIndia(ASI)
January,2014
August,2014
TombofSheikhSalim ChishtiisfamedasoneofthefinestexamplesofMughalarchitectureinIndia.FatehpurSikriMosque
issaidtobeacopyofthemosqueinMeccaandhasdesigns,derivedfrom thePersian&Hinduarchitecture.Oneofthe
mostimportantsitesinsidethemaincampusistheDargahofSheikhSalim Chisti,whichwasbuiltin1570.ThelatticeworkmostimportantsitesinsidethemaincampusistheDargahofSheikhSalim Chisti,whichwasbuiltin1570.Thelatticework
intheDargahisamongthefinesttobefoundanywhereinIndia.
SCOPEOFWORK
•ViewofSalim ChistijiTombcomplex•ViewofentrancetoSalim ChistiJiTomb•ViewofWazootank
Chajja
Damagepatternofbracketsandarchedwallwithjaliindicatesloaddistributionbythestone
slabsusedforchajjaarenotgettingtransferredtothefoundationthroughwallsurfacesinappropriate
manner;whichisresultingformationofcracksindifferentpartsofintermediatesupportingmembers
asbracketsandarchedwallwithjali.
· Patternofcracksinverticaldirectioninstonemembersofarchedwallswithjaliindicates
pressureonwallsfrom topsurface.pressureonwallsfrom topsurface.
· Damagepatterninbracketsi.e.cracksinmainsupportingmembersofbracketor
displacementofstructuralmembersfrom jointsindicatesexcessiveloadisgettingexerted
onstructuralmembers.
RestorationProposal
Immediateactions
· Detailedphotographicdocumentationofeffectedareashouldberecordedastodocument
thestatusofstructurebeforeandafterrestoration.thestatusofstructurebeforeandafterrestoration.
· Rakingofjointsshouldbecarriedoutandrakedjointsshouldbeexposedtohot&dryclimate
toallowdryingofsurface.
· Pointingwithlimemortar(1Lime:1Sand:1Surkhi)mixedwithwaterproofingagentshouldbe
carriedoutforrakedjoints.
· Above-mentionedprocedureofrestorationshouldbefollowedtostrengthenalljointsof
bracketswithwallandchajjaandchajjawithwall.Inadditiontothatwaterproofingtreatment
ofalltypeofjoints/junctionsshouldbecarriedoutastopreventwaterseepage,lossofmortarofalltypeofjoints/junctionsshouldbecarriedoutastopreventwaterseepage,lossofmortar
from jointsandincreaseindeadload,hencecausingdamagetothestructuralcomponent.
· Pointing/groutingofcracksshouldbecarriedouttorepairstructuralcracksinjalibasedonsite
condition.
· Bracesofstainlesssteel(corrosionfree)shouldbefixedtostrengthenthedamagedbracketsas
replacementofMSbracing.
Corner
DamagepatternofNW cornerofthetombas
structuralcrackinbeams,crackinfloorsurface,
saggingofparapetwallreflectstheprobabilityof
settlementofstructurefrom thecorner.
RestorationProposal
ImmediateactionImmediateaction
· Detailedphotographicdocumentationof
effectedareashouldberecordedasto
documentthestatusofstructurebeforeand
afterrestoration.
· Stainlesssteelanchors(brand-'Cintec')shouldbe
usedtorepairtheformedinwesternbeam.
·· Detailedstructuralanalysisoftheeffectedarea
shouldbecarriedouttoevaluatethepatternof
settlement.Thispartofthebuildingshouldbe
assessedindetaili.e.from foundationtorooftop.
· AdditionalsupporttofoundationofNW corner
ofthestructureshouldbeprovidedtoprevent
furthersettlementofthestructure.
·· Behaviorofcracksindifferentseasonshouldbe
analyzedbyusingsensorsandappropriatedata
baseshouldbepreparedforeachstageofwork.
PROJECTBRIEF
RESTORATION
DETAILS
TOMB-SECTION
CONDITION
ASSESSMENT
PROJECTBRIEF
BuildingName
Client
Consultant
Startdate
Enddate
ProjectCostProjectCost
Projectdescription
Scopeofwork
Proposedelevation:
St.FrancisCatholicChurch
UttarakhandTourism DevelopmentBoard
INTACH
Sept,2014
Nov,2014
12Lac(wholeproject)
NainitalisaknowndestinationinthenortherntouristcircuitofIndia.TouristsareattractedbythebeautyofNainitalLakesurroundedNainitalisaknowndestinationinthenortherntouristcircuitofIndia.TouristsareattractedbythebeautyofNainitalLakesurrounded
byhills,lushgreenforestareasanditsrichculturalheritage.Itsrichheritageneedstobeconservedandshowcasedtopromote
tourism throughdiversemeanssuchasinterpretationcentres,experientialmuseums,walks,publications,etc.Otherelements
whichneedattentionare:
Demonstrationofmodelarchitecturalelementsandrestorationofheritagebuildingssuchascemeteries,churches,oldtemple
sites.Nainitalhasthepotentialtotaphighendtourism bydevelopmentofecotourism andadventuretourism.
‘Topromotetourism asafocusareaanddevelopUttarakhandasapremierglobaltourism destination.’‘Topromotetourism asafocusareaanddevelopUttarakhandasapremierglobaltourism destination.’
Acriticalissuelikeheritageconservationhasnotyetbeenaddressedadequately.Besidesthepredominantnaturalheritage,
Nainital’sbuiltheritageisreckonable.Conservationofbuiltheritage,developingsocialandculturaltouristattractions,their
promotionandmarketing,andofcoursedevelopmentofinfrastructuretogetherwouldensuresubstantialpositiveimpacton
theeconomyanditsgrowth.TheStateGovernmenthastakeninitiativefordevelopingtheinfrastructureofthetouristdestinations
intheState.
Conditionassessment,Report&workingdrawings,Finaldrawings,Specifications,Estimatedcost.Conditionassessment,Report&workingdrawings,Finaldrawings,Specifications,Estimatedcost.
Designofpublicutilitieslikedrinkingwaterpoint,benches,dustbinsalongthemallroad&withinheritagesitearea.
Landscapeofthebelowheritagebuildings.
Electricallikestreetlights&lamppostalongthemallroad&withinheritagesitearea.
Designofsignages.
NameofbuildingstobeRestoredwithsiteimprovements:
1)St.Franciscatholicchurch 2)CentalMethodistchurch 3)DSBcollegemuseum 4)Muncipalbuilding
5)Muncipallibrary 6)Newclub 7)Bishopshawschool 8)NGDSA5)Muncipallibrary 6)Newclub 7)Bishopshawschool 8)NGDSA
•Viewofchurchfrom mallroad
•Viewofchurch-Publicentry
•Viewofchurch-thesurroundingarea
•Imageshowingtheexistingcanopydetailoverthewindow
PREPARATIONOFDETAILEDPROJECTREPORTSFORNAINITAL
ELEVATION&DETAILS
SITEPLAN
•Circulationplan-Parking&dropout
•Circulationplan-Publicamenities •Differentzoneswithintheinterventionareaforinfrastructuredevelopement•Circulationplan-Protectedareas
•Siteanalysis •Bufferzone&protectedareaas
perworldheritageguidlines
DEVELOPMENTOFTOURISTINFRASTRUCTUREFACILITIESAROUNDTHE
SUNTEMPLECOMPLEX,KONARK
IndianOilFoundation,NationalCulturalFund,ArchaelogicalSurveyofIndia.
Sept,2006
Oct,2015
40Crore
SurroundingareasoftheSuntemplecomplex(1236-1264AD),aWorldHeritageSite(1984),locatedinKonark,Orissahasbeenconsideredfor
developmentoftouristinfrastructurefacilities.AninitiativehasbeentakenwithcollaborativeeffortsofStateGovernment,ASI(Archaeologicaldevelopmentoftouristinfrastructurefacilities.AninitiativehasbeentakenwithcollaborativeeffortsofStateGovernment,ASI(Archaeological
SurveyofIndia)andIOF(IndianOilFoundation)throughNCF(NationalCultureFund)todevelopthesurroundingareasoftheSuntemplecomplex.
Thesitehasbeendividedintodifferentzones(19no’s)toanalyzethesiteatmacro&microlevel(contour,hydrology,vegetationpattern,usage
pattern,socialcontext,religiousaspectetc.)fordesigningofareasforvariedactivities.Proposedfacilitiesareasfollowing:Parkingforheavy
vehicle,Drop-outpoint,Visitors’haltingspace,Mainavenue,Interpretationcenter,Landscapearea,Thematiclandscapearea,Interpretationvehicle,Drop-outpoint,Visitors’haltingspace,Mainavenue,Interpretationcenter,Landscapearea,Thematiclandscapearea,Interpretation
mound,Benches&sittingareas,KioskforSnacks,Drinkingwaterpoints,Ladies&gentstoilet,Signages,Informativepanels.
ScopeofworkincludesHeritagemanagementstrategy,Planningforheritagesensitivedevelopmentplan,sitesurvey,soiltesting,architectural
design,preparationofDPR&draftestimate,Tenderdrawings,estimation,workingdrawingandnecessarydetailingwheneverrequired.
Structuraldesign,plumbing&firesafetyservicesdesign,InteriordesigningandLandscapedesign.
Client
Startdate
Enddate
Projectcost
Projectdescription
Scopeofwork
TheSite:
•Viewofmainavenuefrom mainroadtowardsSunTemple
•ViewofSunTemple
PROJECTBRIEF
•Elevation-Snackscounter
•Elevation-Drinkingwaterpoint
•Elevation-Rainwatershelter
•Elevation-Toiletblock
•Elevation-Interpretationcenter-Developedconceptualizedbyuseoflocalvernaculararchitecturalstyle •Elevation-Dropoutpoint-Developedconceptualizedbyuse
oflocalvernaculararchitecturalstyle
•Plan-Interpretationcenter
•Plan-Mainavenue
•Plan-Dropoutpoint
PROJECTBRIEF
PROPOSEDLAYOUTPLANFOR“SUNNYBASANT”HOUSINGPROJECT,SECTOR117,SASNAGAR,MOHALI,PUNJAB
SiteArea
Promoters
Numberofunits
25Acre
Bajwadaminidevelopers,Basantavenue,Dugriroad,Ludhiana
GroupHousing
BlockA(2BHK)=4x6x12=288flats BlockB(3BHK)withservantroom =2x6x11=132flats
BlockC(3BHK)=4x6x12=288flats Flats=702 Totalperson=702x4.5=3159
G+3houses=42x4=168houses=168x4.5=756Persons
Villas=91Nos.=91x4.5=410PersonsVillas=91Nos.=91x4.5=410Persons
Totalpersons=3159+756+410=4325
•G+3(option1)1stfloorplan:Superarea-2000sq.mt.
•G+3(option2)1stfloorplan:Superarea-2010sq.mt. •Villagroundfloor:100sq.mt.•Villa1stfloorplan
•BlockA(2BHK)
Area:85sq.mt
•BlockB(3BHK)
Area:107sq.mt
TRAINING
PROPOSEDRESIDENCEFORMR.MANISHLAL,MOHALI-SECTOR90,PUNJAB
•Groundfloorplan
•Frontelevation •SectionatX-X •SectionatY-Y
•1stfloorplan •2ndfloorplan •Terracefloorplan
TRAINING
INTERNATIONALCENTERFORHIGHERBUDDHISTSTUDIES,NAGPUR
SiteArea
Timeperiod
Promoters
Location
Projectdescription
Aim
ScopeofworkScopeofwork
44Acre
January2013-May2013
WEBCA(Worldeducationofbuddhistculture&arts)Researchcenter
Nagpur,landadjacenttotheDragonPalace,Kamptee,Nagpur
TheI.C.H.B.SisaninternationalinstituteofBuddhism highereducationnetworkto
understandandbenefitsformingtherichnessandvarietyofmultinational
Buddhisttraditionandknowledge.Buddhisttraditionandknowledge.
Inordertocatertothepeoplecomingtothetempleandtocatertothetourism
developmentinthearea.TheprojectasproposedisatributetoDrAmbedkar,who
wasafollowerofBuddhistprinciples.Theprojectcreatesacommonplatform forthe
sharing,teaching,andpractiseofphilosophiesofLordBuddha.
ItisaninstitutionalprojectwhichwillworktowardsacquisitionofhigherBuddhist
studiestothemonksatinternationallevel,preservationofBuddhistculture
traditionandart.traditionandart.
Stupa Chaityahalls Conventioncentre
Auditorium Exhibitionhall Meditation(vipassana)
Education&researchcenter Integratedlibrary Museum andgallery
Sustainable&energyefficientbuilding.
Useofrenewableresourcesofenergy:Wind,Water&Sun.
Useofearthernpotsintheroofslabtoresistheatgain.
Campusplanbasedonlotuspetal.LotussignifiesCampusplanbasedonlotuspetal.Lotussignifies
peace&puritywhichisoneoftheteachingsfrom
Buddha.Theeightpetalsoflotusflowerdepictstheeight
campusblocks.
Maximum buildingsareplacedinN-Sorientation,
expectacademicblocks.
ThestatueofBuddhaiscentrallyplacedinthesite,so
thattheconceptofNirvanacanbeattainedinformthattheconceptofNirvanacanbeattainedinform
ofEightfoldpath.
3layersoftrees(densefoliage)placedforcontrollingnoisepollution
Layer1:Medium sizetrees Layer2:Largesizetrees Layer3:Smallsizetrees
THESIS
THESIS
PROJECTBRIEF
•BASEMENTFLOORPLAN
•SECTIONALELEVATIONATX-X’
•SECTIONALELEVATIONATY-Y’
•Viewoftemple
Scopeofwork Basementfloorplan
Groundfloorplan
Firstfloorplan
Secondfloorplan
:Meditationcenter
:Prayerhall,Office,Monksroom
:Primary&Secondaryschoolclassrooms
:RestroomsforMonks&DalaiLama
•Interiorviewoftempleplatform •Plan,elevation&sectionofwindow
•Viewofwindows
•Templeroofatlvl.17350mm•Viewofcolumns •Templeroofat
lvl.13650mm
•GROUNDFLOORPLAN
•FRONTELEVATION
•ViewofMaingate&boundarwall
•ViewofModel
•Viewofstupasonboundarywall
•ViewofbellkioskinfrontofTemple•ViewofStupa,locatedontheright
sideoftheBuddhastatue
•Buddhastatueiscentrallylocated,
belowthestatue,thereisameditation
hallforthelocalpeople
•ViewofAcademic buildingblock
•Elevation,Plan&Viewofprayer
wheelkiosk
•GROUNDFLOORPLAN
•FRONTELEVATION
•SECTIONALELEVATIONATX-X’
•Pargolasusedtomake
pathwaysemicovered
•Useofgrasspaversinpathways
•ElevationofMaingate&boundarwall
•Viewofsittingkiosk
PROJECTBRIEF

Ankita Goyal Portfolio