DAFTAR GAMBAR
STR
SESUAI GBR
JUDUL GAMBAR
NAMA PROYEK/PEKERJAAN
KETERANGAN
NOMOR REVISI KODE GAMBAR JUMLAH LEMBAR
PEMILIK PROYEK
SKALA
NOMOR LEMBAR
Beyond Port of Indonesia
PEKERJAAN PEMBANGUNAN FASILITAS
PENUNJANG TERMINAL GILIMAS
DIPERIKSA OLEH TANDA TANGAN
JAYA VIA DEWATA
ASM. PERENCANAAN TEKNIK
DISETUJUI OLEH TANDA TANGAN
HENDIEK EKO S.
SM. FASILITAS PELABUHAN
DIBUAT OLEH TANDA TANGAN
PRADIPTA PRATAMA
STAF FASILITAS PELABUHAN
LINDA MARBUN
STAF FASILITAS PELABUHAN
(PEKERJAAN TAMAN DAN PEDESTRIAN)
TDP 00
DAFTAR GAMBAR
" PEKERJAAN TAMAN DAN PEDESTRIAN"
NOMOR NAMA GAMBAR
TDP 01 LAYOUT
TDP 02 DENAH
TDP 03 TAMPAK 01
TDP 04 TAMPAK 02
TDP 05
POTONGAN A
TDP 06
POTONGAN B
TDP 07
POTONGAN C
TDP 08
DETAIL POTONGAN PAGAR BRC DAN MANHOLE
TDP 09
TDP 010 TABEL STRUKTUR
MODUL PAGAR
2.130
1.010
2.120
2.140
1.230
0.860
1.190 0.620
2.810
0.490
15.770
10.170
1.290
0.820
0.770
0.930
1
B
E
L
+
3
.
9
5
M
L
W
S
R.PAN
EL
R.
LAKT
ASI
JANIT
OR
NK
LAV.W
ANIT
A
LAV.P
RIA
LAV.
WAN
ITA
R.LIF
T
LAV.D
IFAB
EL
NK
NK
X-RA
Y
AREA
MINI
MAR
KET/
CAFE
MINIM
ARKE
T/
CAFE
R.TU
NGG
U
KEBE
RANG
KATA
N
LAV.W
ANIT
A
LAV.P
RIA
LAV.
WAN
ITA
LAV.D
IFAB
EL
LAV.P
RIA
LAV.P
RIA
R.TU
NGG
U
KEBE
RANG
KATA
N
17
18
19
20
21
22
23
24
25
26
27
28
29
30
31
32
33
34
35
JL. RAYA SEKOTONG LEWAT DI BAWAH
1%
1%
1%
1%
1%
1%
1%
1%
1%
1%
1%
1%
1%
1%
LAYOUT
STR
SESUAI GBR
JUDUL GAMBAR
NAMA PROYEK/PEKERJAAN
KETERANGAN
NOMOR REVISI KODE GAMBAR JUMLAH LEMBAR
PEMILIK PROYEK
SKALA
NOMOR LEMBAR
Beyond Port of Indonesia
PEKERJAAN PEMBANGUNAN FASILITAS
PENUNJANG TERMINAL GILIMAS
DIPERIKSA OLEH TANDA TANGAN
JAYA VIA DEWATA
ASM. PERENCANAAN TEKNIK
DISETUJUI OLEH TANDA TANGAN
HENDIEK EKO S.
SM. FASILITAS PELABUHAN
DIBUAT OLEH TANDA TANGAN
PRADIPTA PRATAMA
STAF FASILITAS PELABUHAN
LINDA MARBUN
STAF FASILITAS PELABUHAN
(PEKERJAAN TAMAN DAN PEDESTRIAN)
TDP 01
1 : 2000
LAYOUT
TAMAN DAN PEDESTRIAN
DENAH
STR
1 : 100
DETAIL MODUL DENAH SESUAI GBR
JUDUL GAMBAR
NAMA PROYEK/PEKERJAAN
KETERANGAN
NOMOR REVISI KODE GAMBAR JUMLAH LEMBAR
PEMILIK PROYEK
SKALA
NOMOR LEMBAR
Beyond Port of Indonesia
PEKERJAAN PEMBANGUNAN FASILITAS
PENUNJANG TERMINAL GILIMAS
DIPERIKSA OLEH TANDA TANGAN
JAYA VIA DEWATA
ASM. PERENCANAAN TEKNIK
DISETUJUI OLEH TANDA TANGAN
HENDIEK EKO S.
SM. FASILITAS PELABUHAN
DIBUAT OLEH TANDA TANGAN
PRADIPTA PRATAMA
STAF FASILITAS PELABUHAN
LINDA MARBUN
STAF FASILITAS PELABUHAN
(PEKERJAAN TAMAN DAN PEDESTRIAN)
TDP 02
1 : 1500
DENAH TAMAN DAN PEDESTRIAN
2100
150
2925
150
1100
6425
KANSTEEN
MANHOLE 60X60 CM
LANTAI BATU ALAM 40X40
(MOTIF TENTATIF)
GUIDELINE
KANSTEEN
PAGAR BRC
BOLLARD PILLAR LIGHT
RUMPUT GAJAH MINI
U-DITCH EKSISTING
414000
6425
MODUL
MODUL PERLETAKKAN :
1. MODUL PERLETAKKAN UNTUK BOLLARD PILLAR LIGHT PER 8 METER
2. MODUL PERLETAKAN POHON PER 8 METER
3. MODUL PERLETAKAN MANHOLE PER 40 METER
5000 5000
TAMPAK 01
ARS
SESUAI GBR
JUDUL GAMBAR
NAMA PROYEK/PEKERJAAN
KETERANGAN
NOMOR REVISI KODE GAMBAR JUMLAH LEMBAR
PEMILIK PROYEK
SKALA
NOMOR LEMBAR
Beyond Port of Indonesia
PEKERJAAN PEMBANGUNAN FASILITAS
PENUNJANG TERMINAL GILIMAS
DIPERIKSA OLEH TANDA TANGAN
JAYA VIA DEWATA
ASM. PERENCANAAN TEKNIK
DISETUJUI OLEH TANDA TANGAN
HENDIEK EKO S.
SM. FASILITAS PELABUHAN
DIBUAT OLEH TANDA TANGAN
PRADIPTA PRATAMA
STAF FASILITAS PELABUHAN
LINDA MARBUN
STAF FASILITAS PELABUHAN
(PEKERJAAN TAMAN DAN PEDESTRIAN)
1 : 40
TAMPAK 01
TAMPAK 01
TDP 03
TAMPAK 02
ARS
SESUAI GBR
JUDUL GAMBAR
NAMA PROYEK/PEKERJAAN
KETERANGAN
NOMOR REVISI KODE GAMBAR JUMLAH LEMBAR
PEMILIK PROYEK
SKALA
NOMOR LEMBAR
Beyond Port of Indonesia
PEKERJAAN PEMBANGUNAN FASILITAS
PENUNJANG TERMINAL GILIMAS
DIPERIKSA OLEH TANDA TANGAN
JAYA VIA DEWATA
ASM. PERENCANAAN TEKNIK
DISETUJUI OLEH TANDA TANGAN
HENDIEK EKO S.
SM. FASILITAS PELABUHAN
DIBUAT OLEH TANDA TANGAN
PRADIPTA PRATAMA
STAF FASILITAS PELABUHAN
LINDA MARBUN
STAF FASILITAS PELABUHAN
(PEKERJAAN TAMAN DAN PEDESTRIAN)
1 : 40
TAMPAK 02
TAMPAK 02
TDP 04
MODUL PAGAR
ARS
SESUAI GBR
JUDUL GAMBAR
NAMA PROYEK/PEKERJAAN
KETERANGAN
NOMOR REVISI KODE GAMBAR JUMLAH LEMBAR
PEMILIK PROYEK
SKALA
NOMOR LEMBAR
Beyond Port of Indonesia
PEKERJAAN PEMBANGUNAN FASILITAS
PENUNJANG TERMINAL GILIMAS
DIPERIKSA OLEH TANDA TANGAN
JAYA VIA DEWATA
ASM. PERENCANAAN TEKNIK
DISETUJUI OLEH TANDA TANGAN
HENDIEK EKO S.
SM. FASILITAS PELABUHAN
DIBUAT OLEH TANDA TANGAN
PRADIPTA PRATAMA
STAF FASILITAS PELABUHAN
LINDA MARBUN
STAF FASILITAS PELABUHAN
(PEKERJAAN TAMAN DAN PEDESTRIAN)
1 : 40
MODUL PAGAR
TDP 05
PAGAR BRC
PIPA PAGAR BRC 2'
KOLOM DINDING BETON 15X15 CM
DINDING BATA FIN CAT ABU- ABU
2100
500
250
2500 2500 2500 2500 2500
1900
150
2500 2500 2500 2500 2500
MODUL PAGAR KOLOM PRAKTIS PER 5 METER
MODUL BRC 1.9 X 2.4 METER PER 2.5 METER
POTONGAN A
ARS
SESUAI GBR
JUDUL GAMBAR
NAMA PROYEK/PEKERJAAN
KETERANGAN
NOMOR REVISI KODE GAMBAR JUMLAH LEMBAR
PEMILIK PROYEK
SKALA
NOMOR LEMBAR
Beyond Port of Indonesia
PEKERJAAN PEMBANGUNAN FASILITAS
PENUNJANG TERMINAL GILIMAS
DIPERIKSA OLEH TANDA TANGAN
JAYA VIA DEWATA
ASM. PERENCANAAN TEKNIK
DISETUJUI OLEH TANDA TANGAN
HENDIEK EKO S.
SM. FASILITAS PELABUHAN
DIBUAT OLEH TANDA TANGAN
PRADIPTA PRATAMA
STAF FASILITAS PELABUHAN
LINDA MARBUN
STAF FASILITAS PELABUHAN
(PEKERJAAN TAMAN DAN PEDESTRIAN)
1 : 50
POTONGAN A
A
BOLLARD PILLAR LIGHT
KANSTEEN 15X30
KANSTEEN EKSISTING
BATU ALAM 40X40
LANTAI KERJA T: 5 CM
RUMPUT GAJAH MINI
POHON TABEBUIA (TENTATIF)
PAGAR BRC
PAGAR DINDING T : 50 CM
SALURAN EKSISTING
280
570
250
500
2100
2850
850
± 0.00
± 0.33
200
200
100
600
300
125
400
400
600
± 0.73
± 0.25
TDP 06
POTONGAN B
ARS
SESUAI GBR
JUDUL GAMBAR
NAMA PROYEK/PEKERJAAN
KETERANGAN
NOMOR REVISI KODE GAMBAR JUMLAH LEMBAR
PEMILIK PROYEK
SKALA
NOMOR LEMBAR
Beyond Port of Indonesia
PEKERJAAN PEMBANGUNAN FASILITAS
PENUNJANG TERMINAL GILIMAS
DIPERIKSA OLEH TANDA TANGAN
JAYA VIA DEWATA
ASM. PERENCANAAN TEKNIK
DISETUJUI OLEH TANDA TANGAN
HENDIEK EKO S.
SM. FASILITAS PELABUHAN
DIBUAT OLEH TANDA TANGAN
PRADIPTA PRATAMA
STAF FASILITAS PELABUHAN
LINDA MARBUN
STAF FASILITAS PELABUHAN
(PEKERJAAN TAMAN DAN PEDESTRIAN)
1 : 40
POTONGAN B
B
TDP 07
3 °
KANSTEEN 15X30 PONDASI BATU KALI
LANTAI BATU ALAM 40X40
LANTAI KERJA T : 5 CM
KANSTEEN 15X30
PONDASI BATU KALI
TAMAN RUMPUT
GAJAH MINI
TANAH URUG
TANAH URUG
± 0.00
+ 0.33
330
280
70
680
200 5584 400 2470 400
POTONGAN C
ARS
SESUAI GBR
JUDUL GAMBAR
NAMA PROYEK/PEKERJAAN
KETERANGAN
NOMOR REVISI KODE GAMBAR JUMLAH LEMBAR
PEMILIK PROYEK
SKALA
NOMOR LEMBAR
Beyond Port of Indonesia
PEKERJAAN PEMBANGUNAN FASILITAS
PENUNJANG TERMINAL GILIMAS
DIPERIKSA OLEH TANDA TANGAN
JAYA VIA DEWATA
ASM. PERENCANAAN TEKNIK
DISETUJUI OLEH TANDA TANGAN
HENDIEK EKO S.
SM. FASILITAS PELABUHAN
DIBUAT OLEH TANDA TANGAN
PRADIPTA PRATAMA
STAF FASILITAS PELABUHAN
LINDA MARBUN
STAF FASILITAS PELABUHAN
(PEKERJAAN TAMAN DAN PEDESTRIAN)
1 : 40
POTONGAN C
TDP 08
6 °
KANSTEEN 15X30
PONDASI BATU KALI
LANTAI BATU ALAM 40X40
LANTAI KERJA T : 5 CM
KANSTEEN 15X30
PONDASI BATU KALI
TAMAN RUMPUT
GAJAH MINI
TANAH URUG
± 0.00
+ 0.33
C
400 2470 400 3013 200
330
280
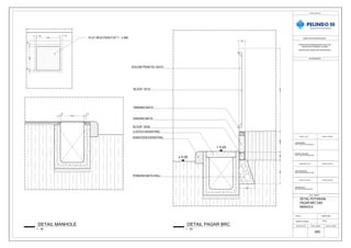
DETAIL POTONGAN
PAGAR BRC DAN
MANHOLE
ARS
SESUAI GBR
JUDUL GAMBAR
NAMA PROYEK/PEKERJAAN
KETERANGAN
NOMOR REVISI KODE GAMBAR JUMLAH LEMBAR
PEMILIK PROYEK
SKALA
NOMOR LEMBAR
Beyond Port of Indonesia
PEKERJAAN PEMBANGUNAN FASILITAS
PENUNJANG TERMINAL GILIMAS
DIPERIKSA OLEH TANDA TANGAN
JAYA VIA DEWATA
ASM. PERENCANAAN TEKNIK
DISETUJUI OLEH TANDA TANGAN
HENDIEK EKO S.
SM. FASILITAS PELABUHAN
DIBUAT OLEH TANDA TANGAN
PRADIPTA PRATAMA
STAF FASILITAS PELABUHAN
LINDA MARBUN
STAF FASILITAS PELABUHAN
(PEKERJAAN TAMAN DAN PEDESTRIAN)
1 : 20
DETAIL PAGAR BRC
TDP 09
± 0.00
+ 0.25
2100
10396
200
600
400
150
U-DITCH EKSISTING
KANSTEEN EKSISTING
SLOOF 15/20
DINDING BATA
SLOOF 15/10
PONDASI BATU KALI
KOLOM PRAKTIS 15X15
1 : 20
DETAIL MANHOLE
PLAT BESI PENUTUP T : 3 MM
600
50 50
50
600
50
50
600
50
DINDING BATA
KODE SLOOF
POTONGAN
Dimensi
Tulangan Atas
Tulangan Bawah
Sengkang
TABEL PENULANGAN SLOOF
(Tumpuan) (Lapangan)
S-1 (150x200)
15x20
Ø8-200
2Ø 10
2Ø 10
15x20
Ø8-200
2Ø 10
2Ø 10
200
150
200
150
150
150
150
150
PEDESTAL LAMPU
POTONGAN
Dimensi
Tulangan Utama
Sengkang
30X30
Ø8-150
8Ø10
PD (300X300)
KOLOM
POTONGAN
Dimensi
Tulangan Atas
Tulangan Bawah
Sengkang
TABEL PENULANGAN KOLOM
(Tumpuan) (Lapangan)
KOLOM PRAKTIS
2 Ø 8
Ø8-100
2 Ø 8
2 Ø 8
Ø8-100
2 Ø 8
15x15 15x15
300
300
TABEL PENULANGAN PONDASI
(Tumpuan) (Lapangan)
S-2 (150x100)
15x10
Ø8-200
2Ø 10
2Ø 10
15x10
Ø8-200
2Ø 10
2Ø 10
150
100
150
100
TABEL STRUKTUR
ARS
SESUAI GBR
JUDUL GAMBAR
NAMA PROYEK/PEKERJAAN
KETERANGAN
NOMOR REVISI KODE GAMBAR JUMLAH LEMBAR
PEMILIK PROYEK
SKALA
NOMOR LEMBAR
Beyond Port of Indonesia
PEKERJAAN PEMBANGUNAN FASILITAS
PENUNJANG TERMINAL GILIMAS
DIPERIKSA OLEH TANDA TANGAN
JAYA VIA DEWATA
ASM. PERENCANAAN TEKNIK
DISETUJUI OLEH TANDA TANGAN
HENDIEK EKO S.
SM. FASILITAS PELABUHAN
DIBUAT OLEH TANDA TANGAN
PRADIPTA PRATAMA
STAF FASILITAS PELABUHAN
LINDA MARBUN
STAF FASILITAS PELABUHAN
(PEKERJAAN TAMAN DAN PEDESTRIAN)
TDP 010

Taman Pedestrian.pdf

  • 1.
    DAFTAR GAMBAR STR SESUAI GBR JUDULGAMBAR NAMA PROYEK/PEKERJAAN KETERANGAN NOMOR REVISI KODE GAMBAR JUMLAH LEMBAR PEMILIK PROYEK SKALA NOMOR LEMBAR Beyond Port of Indonesia PEKERJAAN PEMBANGUNAN FASILITAS PENUNJANG TERMINAL GILIMAS DIPERIKSA OLEH TANDA TANGAN JAYA VIA DEWATA ASM. PERENCANAAN TEKNIK DISETUJUI OLEH TANDA TANGAN HENDIEK EKO S. SM. FASILITAS PELABUHAN DIBUAT OLEH TANDA TANGAN PRADIPTA PRATAMA STAF FASILITAS PELABUHAN LINDA MARBUN STAF FASILITAS PELABUHAN (PEKERJAAN TAMAN DAN PEDESTRIAN) TDP 00 DAFTAR GAMBAR " PEKERJAAN TAMAN DAN PEDESTRIAN" NOMOR NAMA GAMBAR TDP 01 LAYOUT TDP 02 DENAH TDP 03 TAMPAK 01 TDP 04 TAMPAK 02 TDP 05 POTONGAN A TDP 06 POTONGAN B TDP 07 POTONGAN C TDP 08 DETAIL POTONGAN PAGAR BRC DAN MANHOLE TDP 09 TDP 010 TABEL STRUKTUR MODUL PAGAR
  • 2.
    2.130 1.010 2.120 2.140 1.230 0.860 1.190 0.620 2.810 0.490 15.770 10.170 1.290 0.820 0.770 0.930 1 B E L + 3 . 9 5 M L W S R.PAN EL R. LAKT ASI JANIT OR NK LAV.W ANIT A LAV.P RIA LAV. WAN ITA R.LIF T LAV.D IFAB EL NK NK X-RA Y AREA MINI MAR KET/ CAFE MINIM ARKE T/ CAFE R.TU NGG U KEBE RANG KATA N LAV.W ANIT A LAV.P RIA LAV. WAN ITA LAV.D IFAB EL LAV.P RIA LAV.P RIA R.TU NGG U KEBE RANG KATA N 17 18 19 20 21 22 23 24 25 26 27 28 29 30 31 32 33 34 35 JL. RAYASEKOTONG LEWAT DI BAWAH 1% 1% 1% 1% 1% 1% 1% 1% 1% 1% 1% 1% 1% 1% LAYOUT STR SESUAI GBR JUDUL GAMBAR NAMA PROYEK/PEKERJAAN KETERANGAN NOMOR REVISI KODE GAMBAR JUMLAH LEMBAR PEMILIK PROYEK SKALA NOMOR LEMBAR Beyond Port of Indonesia PEKERJAAN PEMBANGUNAN FASILITAS PENUNJANG TERMINAL GILIMAS DIPERIKSA OLEH TANDA TANGAN JAYA VIA DEWATA ASM. PERENCANAAN TEKNIK DISETUJUI OLEH TANDA TANGAN HENDIEK EKO S. SM. FASILITAS PELABUHAN DIBUAT OLEH TANDA TANGAN PRADIPTA PRATAMA STAF FASILITAS PELABUHAN LINDA MARBUN STAF FASILITAS PELABUHAN (PEKERJAAN TAMAN DAN PEDESTRIAN) TDP 01 1 : 2000 LAYOUT TAMAN DAN PEDESTRIAN
  • 3.
    DENAH STR 1 : 100 DETAILMODUL DENAH SESUAI GBR JUDUL GAMBAR NAMA PROYEK/PEKERJAAN KETERANGAN NOMOR REVISI KODE GAMBAR JUMLAH LEMBAR PEMILIK PROYEK SKALA NOMOR LEMBAR Beyond Port of Indonesia PEKERJAAN PEMBANGUNAN FASILITAS PENUNJANG TERMINAL GILIMAS DIPERIKSA OLEH TANDA TANGAN JAYA VIA DEWATA ASM. PERENCANAAN TEKNIK DISETUJUI OLEH TANDA TANGAN HENDIEK EKO S. SM. FASILITAS PELABUHAN DIBUAT OLEH TANDA TANGAN PRADIPTA PRATAMA STAF FASILITAS PELABUHAN LINDA MARBUN STAF FASILITAS PELABUHAN (PEKERJAAN TAMAN DAN PEDESTRIAN) TDP 02 1 : 1500 DENAH TAMAN DAN PEDESTRIAN 2100 150 2925 150 1100 6425 KANSTEEN MANHOLE 60X60 CM LANTAI BATU ALAM 40X40 (MOTIF TENTATIF) GUIDELINE KANSTEEN PAGAR BRC BOLLARD PILLAR LIGHT RUMPUT GAJAH MINI U-DITCH EKSISTING 414000 6425 MODUL MODUL PERLETAKKAN : 1. MODUL PERLETAKKAN UNTUK BOLLARD PILLAR LIGHT PER 8 METER 2. MODUL PERLETAKAN POHON PER 8 METER 3. MODUL PERLETAKAN MANHOLE PER 40 METER 5000 5000
  • 4.
    TAMPAK 01 ARS SESUAI GBR JUDULGAMBAR NAMA PROYEK/PEKERJAAN KETERANGAN NOMOR REVISI KODE GAMBAR JUMLAH LEMBAR PEMILIK PROYEK SKALA NOMOR LEMBAR Beyond Port of Indonesia PEKERJAAN PEMBANGUNAN FASILITAS PENUNJANG TERMINAL GILIMAS DIPERIKSA OLEH TANDA TANGAN JAYA VIA DEWATA ASM. PERENCANAAN TEKNIK DISETUJUI OLEH TANDA TANGAN HENDIEK EKO S. SM. FASILITAS PELABUHAN DIBUAT OLEH TANDA TANGAN PRADIPTA PRATAMA STAF FASILITAS PELABUHAN LINDA MARBUN STAF FASILITAS PELABUHAN (PEKERJAAN TAMAN DAN PEDESTRIAN) 1 : 40 TAMPAK 01 TAMPAK 01 TDP 03
  • 5.
    TAMPAK 02 ARS SESUAI GBR JUDULGAMBAR NAMA PROYEK/PEKERJAAN KETERANGAN NOMOR REVISI KODE GAMBAR JUMLAH LEMBAR PEMILIK PROYEK SKALA NOMOR LEMBAR Beyond Port of Indonesia PEKERJAAN PEMBANGUNAN FASILITAS PENUNJANG TERMINAL GILIMAS DIPERIKSA OLEH TANDA TANGAN JAYA VIA DEWATA ASM. PERENCANAAN TEKNIK DISETUJUI OLEH TANDA TANGAN HENDIEK EKO S. SM. FASILITAS PELABUHAN DIBUAT OLEH TANDA TANGAN PRADIPTA PRATAMA STAF FASILITAS PELABUHAN LINDA MARBUN STAF FASILITAS PELABUHAN (PEKERJAAN TAMAN DAN PEDESTRIAN) 1 : 40 TAMPAK 02 TAMPAK 02 TDP 04
  • 6.
    MODUL PAGAR ARS SESUAI GBR JUDULGAMBAR NAMA PROYEK/PEKERJAAN KETERANGAN NOMOR REVISI KODE GAMBAR JUMLAH LEMBAR PEMILIK PROYEK SKALA NOMOR LEMBAR Beyond Port of Indonesia PEKERJAAN PEMBANGUNAN FASILITAS PENUNJANG TERMINAL GILIMAS DIPERIKSA OLEH TANDA TANGAN JAYA VIA DEWATA ASM. PERENCANAAN TEKNIK DISETUJUI OLEH TANDA TANGAN HENDIEK EKO S. SM. FASILITAS PELABUHAN DIBUAT OLEH TANDA TANGAN PRADIPTA PRATAMA STAF FASILITAS PELABUHAN LINDA MARBUN STAF FASILITAS PELABUHAN (PEKERJAAN TAMAN DAN PEDESTRIAN) 1 : 40 MODUL PAGAR TDP 05 PAGAR BRC PIPA PAGAR BRC 2' KOLOM DINDING BETON 15X15 CM DINDING BATA FIN CAT ABU- ABU 2100 500 250 2500 2500 2500 2500 2500 1900 150 2500 2500 2500 2500 2500 MODUL PAGAR KOLOM PRAKTIS PER 5 METER MODUL BRC 1.9 X 2.4 METER PER 2.5 METER
  • 7.
    POTONGAN A ARS SESUAI GBR JUDULGAMBAR NAMA PROYEK/PEKERJAAN KETERANGAN NOMOR REVISI KODE GAMBAR JUMLAH LEMBAR PEMILIK PROYEK SKALA NOMOR LEMBAR Beyond Port of Indonesia PEKERJAAN PEMBANGUNAN FASILITAS PENUNJANG TERMINAL GILIMAS DIPERIKSA OLEH TANDA TANGAN JAYA VIA DEWATA ASM. PERENCANAAN TEKNIK DISETUJUI OLEH TANDA TANGAN HENDIEK EKO S. SM. FASILITAS PELABUHAN DIBUAT OLEH TANDA TANGAN PRADIPTA PRATAMA STAF FASILITAS PELABUHAN LINDA MARBUN STAF FASILITAS PELABUHAN (PEKERJAAN TAMAN DAN PEDESTRIAN) 1 : 50 POTONGAN A A BOLLARD PILLAR LIGHT KANSTEEN 15X30 KANSTEEN EKSISTING BATU ALAM 40X40 LANTAI KERJA T: 5 CM RUMPUT GAJAH MINI POHON TABEBUIA (TENTATIF) PAGAR BRC PAGAR DINDING T : 50 CM SALURAN EKSISTING 280 570 250 500 2100 2850 850 ± 0.00 ± 0.33 200 200 100 600 300 125 400 400 600 ± 0.73 ± 0.25 TDP 06
  • 8.
    POTONGAN B ARS SESUAI GBR JUDULGAMBAR NAMA PROYEK/PEKERJAAN KETERANGAN NOMOR REVISI KODE GAMBAR JUMLAH LEMBAR PEMILIK PROYEK SKALA NOMOR LEMBAR Beyond Port of Indonesia PEKERJAAN PEMBANGUNAN FASILITAS PENUNJANG TERMINAL GILIMAS DIPERIKSA OLEH TANDA TANGAN JAYA VIA DEWATA ASM. PERENCANAAN TEKNIK DISETUJUI OLEH TANDA TANGAN HENDIEK EKO S. SM. FASILITAS PELABUHAN DIBUAT OLEH TANDA TANGAN PRADIPTA PRATAMA STAF FASILITAS PELABUHAN LINDA MARBUN STAF FASILITAS PELABUHAN (PEKERJAAN TAMAN DAN PEDESTRIAN) 1 : 40 POTONGAN B B TDP 07 3 ° KANSTEEN 15X30 PONDASI BATU KALI LANTAI BATU ALAM 40X40 LANTAI KERJA T : 5 CM KANSTEEN 15X30 PONDASI BATU KALI TAMAN RUMPUT GAJAH MINI TANAH URUG TANAH URUG ± 0.00 + 0.33 330 280 70 680 200 5584 400 2470 400
  • 9.
    POTONGAN C ARS SESUAI GBR JUDULGAMBAR NAMA PROYEK/PEKERJAAN KETERANGAN NOMOR REVISI KODE GAMBAR JUMLAH LEMBAR PEMILIK PROYEK SKALA NOMOR LEMBAR Beyond Port of Indonesia PEKERJAAN PEMBANGUNAN FASILITAS PENUNJANG TERMINAL GILIMAS DIPERIKSA OLEH TANDA TANGAN JAYA VIA DEWATA ASM. PERENCANAAN TEKNIK DISETUJUI OLEH TANDA TANGAN HENDIEK EKO S. SM. FASILITAS PELABUHAN DIBUAT OLEH TANDA TANGAN PRADIPTA PRATAMA STAF FASILITAS PELABUHAN LINDA MARBUN STAF FASILITAS PELABUHAN (PEKERJAAN TAMAN DAN PEDESTRIAN) 1 : 40 POTONGAN C TDP 08 6 ° KANSTEEN 15X30 PONDASI BATU KALI LANTAI BATU ALAM 40X40 LANTAI KERJA T : 5 CM KANSTEEN 15X30 PONDASI BATU KALI TAMAN RUMPUT GAJAH MINI TANAH URUG ± 0.00 + 0.33 C 400 2470 400 3013 200 330 280
  • 10.
    DETAIL POTONGAN PAGAR BRCDAN MANHOLE ARS SESUAI GBR JUDUL GAMBAR NAMA PROYEK/PEKERJAAN KETERANGAN NOMOR REVISI KODE GAMBAR JUMLAH LEMBAR PEMILIK PROYEK SKALA NOMOR LEMBAR Beyond Port of Indonesia PEKERJAAN PEMBANGUNAN FASILITAS PENUNJANG TERMINAL GILIMAS DIPERIKSA OLEH TANDA TANGAN JAYA VIA DEWATA ASM. PERENCANAAN TEKNIK DISETUJUI OLEH TANDA TANGAN HENDIEK EKO S. SM. FASILITAS PELABUHAN DIBUAT OLEH TANDA TANGAN PRADIPTA PRATAMA STAF FASILITAS PELABUHAN LINDA MARBUN STAF FASILITAS PELABUHAN (PEKERJAAN TAMAN DAN PEDESTRIAN) 1 : 20 DETAIL PAGAR BRC TDP 09 ± 0.00 + 0.25 2100 10396 200 600 400 150 U-DITCH EKSISTING KANSTEEN EKSISTING SLOOF 15/20 DINDING BATA SLOOF 15/10 PONDASI BATU KALI KOLOM PRAKTIS 15X15 1 : 20 DETAIL MANHOLE PLAT BESI PENUTUP T : 3 MM 600 50 50 50 600 50 50 600 50 DINDING BATA
  • 11.
    KODE SLOOF POTONGAN Dimensi Tulangan Atas TulanganBawah Sengkang TABEL PENULANGAN SLOOF (Tumpuan) (Lapangan) S-1 (150x200) 15x20 Ø8-200 2Ø 10 2Ø 10 15x20 Ø8-200 2Ø 10 2Ø 10 200 150 200 150 150 150 150 150 PEDESTAL LAMPU POTONGAN Dimensi Tulangan Utama Sengkang 30X30 Ø8-150 8Ø10 PD (300X300) KOLOM POTONGAN Dimensi Tulangan Atas Tulangan Bawah Sengkang TABEL PENULANGAN KOLOM (Tumpuan) (Lapangan) KOLOM PRAKTIS 2 Ø 8 Ø8-100 2 Ø 8 2 Ø 8 Ø8-100 2 Ø 8 15x15 15x15 300 300 TABEL PENULANGAN PONDASI (Tumpuan) (Lapangan) S-2 (150x100) 15x10 Ø8-200 2Ø 10 2Ø 10 15x10 Ø8-200 2Ø 10 2Ø 10 150 100 150 100 TABEL STRUKTUR ARS SESUAI GBR JUDUL GAMBAR NAMA PROYEK/PEKERJAAN KETERANGAN NOMOR REVISI KODE GAMBAR JUMLAH LEMBAR PEMILIK PROYEK SKALA NOMOR LEMBAR Beyond Port of Indonesia PEKERJAAN PEMBANGUNAN FASILITAS PENUNJANG TERMINAL GILIMAS DIPERIKSA OLEH TANDA TANGAN JAYA VIA DEWATA ASM. PERENCANAAN TEKNIK DISETUJUI OLEH TANDA TANGAN HENDIEK EKO S. SM. FASILITAS PELABUHAN DIBUAT OLEH TANDA TANGAN PRADIPTA PRATAMA STAF FASILITAS PELABUHAN LINDA MARBUN STAF FASILITAS PELABUHAN (PEKERJAAN TAMAN DAN PEDESTRIAN) TDP 010