').
6. Заключение: испытательный модуль выдерж€Lл испытания на
центральное сжатие без разрушений и существенных дефектов,
выдержав нагрузку вЗ42З кгна погонный метр конструкции. Панели
отвечают требован иям ТУ 5 2 84-00 1 -2452252З -2006
<<Конструкционные термоструктурные панели системы <<Ильдис
Батгс>.
Подписи:
1. Щиректор Удмуртского отделения
ООО ПКФ пУрал Строй Панель>
2. Щиректор ООО <<Независимая строительная
Ю.А.Ильин
Л.ГI.Шлейн
о.В.Лобашова
лабораторияD
ООО «НЕЗАВИСИМАЯ СТРОИТЕЛЬНАЯ ЛАБОРАТОРИЯ»
Аккредитована на компетентность и независимость, АТТЕСТАТ Х° РОСС.КЦ .0001.210199
СВИДЕТЕЛЬСТВО об оценке состояния измерений в лаборатории № 22-05 .Действительно до 12.01.12 г
Выдано ФГУ «Удмуртский центр стандартизации, метрологии и сертификации»
Россия, 426028, Удмуртская Республика, г.Ижевск, ул. Маяковского, 41, тел/факс 50-59-41 ИНН/ код 1831075208/183201001
Исх,№ 648
« 05 » ИЮЛЯ 2009г.
АКТ № 642
испытания термоструктурных панелей системы
«Ильдис Баттс» на центральное сжатие.
1. Изготовитель: ООО ПКФ «Урал Строй Панель»
2. НД: ТУ 5284-001-24522523-2006 «Конструкционные
термоструктурные панели системы «Ильдис Баттс»
3. Испытательный модуль: объемная конструкция размерами
1006x1565x2500мм. из 10 панелей (2 рядовые и 8 угловые) толщиной
150 мм.,монтажная ширина панелей 500мм., длинна (высота) 2500 мм.
Каркас панелей выполнен из гнутых стальных профилей, для
изготовления которых применена оцинкованная сталь толщиной 1мм.
Панели соединены пластинами из оцинкованной стали толщиной 1
мм. и самонарезающими винтами. В качестве обвязки по нижнему и
верхнему поясу использованы обрамляющие уголки.
4. Испытания проводились согласно ТУ 5284-001-24522523-2006
5. Схема испытания:
• Выдержка на ступенях - 10мин.
• Выдержка контрольной нагрузки - 30мин.
№
ступени
Величина
нагрузки,
кг.
Время
выдержки,
мин.
Отклонения
от вертикали,
мм.
Разрушения и дефекты
1 2000 10
2 7000 10
3 10200 10
Один угол
отклонение 3
мм.
4 14300 10 -II-
5 17600 30
Один угол
отклонение 5
мм.
40% крепежных винтов
обвязки незначительно
отошли от панелей, один
винт полностью выскочил.
Уголки обвязки деформи
ровались, деформации
панелей не обнаружено.
6 0 30 -II- Деформация уголков обвязки
восстановилась.
ФЕДЕРАЛЬНАЯ СЛУЖБА ПО НАДЗОРУ
В СФЕРЕ ЗАЩИТЫ ПРАВ ПОТРЕБИТЕЛЕЙ И БЛАГОПОЛУЧИЯ ЧЕЛОВЕКА
Территориальное управление Федеральной службы по надзору в сфере защиты прав потребителей и
благополучия человека по Удмуртской Республике
(наименование территориального органа)
САНИТАРНО-ЭПИДЕМИОЛОГИЧЕСКОЕ ЗАКЛЮЧЕНИЕ
№ 18.УЦ.02.528.П.000555.06.09 ОТ 13.06.2009 г.
Настоящим санитарно-эпидемиологическим заключением удостоверяется, что продукция:
Конструкционные термоструктурные панели
изготовленная в соответствии
ТУ 5284-001 -24522523 -2006
СООТВЕТСТВУЕТ ЩШЛ йщ^санитарным правилам
(ненужное зачеркнуть, указать пол^о^а^и^е^о^а^и^г^цщаг^т^^отах^нитарно-эпидемиологических
правил и нормативов):
СП 2.6.1.758-99 (НРБ) "Нормы радиационной безопасности".ГН 2.1.6.1338-03 "Предельно-допустимые
концентрации (ПДК) загрязняющих веществ в атмосферном воздухе населенных мест".СанПиН 2.1.2.100^
"Санитарно-эпидемиологические требования к жилым зданиям и помещениям".
Организация-изготовитель
ООО «УралСтройПанель», УР, г. Ижевск, ул. Пойма 29. (Российская Федерация)
Получатель санитарно-эпидемиологического заключения
ООО «УралСтройПанель», УР, г. Ижевск, ул. Пойма 29. (Российская Федерация)
Основанием для признания продукции, соответствующей (не соответствующей)
Санитарным Правилам, ЯВЛЯЮТСЯ (перечислить рассмотренные протоколы исследований, наименование
учреждения, проводившего исследования, другие рассмотренные документы):
Протоколы испытаний ИЛЦ ФГУЗ "ЦГиЭ в УР" № 191 от 15.05.2009г ; №33 от 12.05.09; Экспертное
заключение № 900 от 06.06.09. выд.ФГУЗ "ЦГиЭ в УР" .
№ 0 6 3 8 4 5 5
Ж
Щ... . • .
•00
© ЗАО «Первый печатный двор», г, Москва. 2009 г. Уровень «В»
ГИГИЕНИЧЕСКАЯ ХАРАКТЕРИСТИКА ПРОДУКЦИИ
Гигиенический
норматив
(СанПиН, МДУ, ПДК и др.)
мак.раз. с/с
0,035 0,003
0,01 0,003
0,2 0,04
370 Бк/кг
Вещества,
показатели (факторы)
ПДК загряз.в-в в атм. воздухе и воздухе (мг/м.куб.):
Формальдегид
Гидроксибензол
Аммиак
Удельная эффективная активность (ЕРН) естественных радионуклидов
Область применения:
Для наружной отделки.
Необходимые условия использования, хранения, транспортировки и меры
безопасности:
В жилых, общественных и производственных зданиях и сооружениях в качестве несущих наружных и
внутренних стен, перегородок, мкждуэтажных и чердачных перекрытий, а также совмещенных
кровельных покрытий с обязательной облицовкой наружных и внутренних поверхностей листовыми и
другими материалами, соответствующими требованиям санитарных и протвопожарных норм.
Информация, наносимая на этикетку:
Наименование средства, предприятие-изготовитель, дата изготовления, срок годности, назначение,
правила использования, обозначение нормативной документации. 
Заключение действительно до
14.06.2014 г.
Главный государственный санитарный врач
(заместитель главного государственного санитарного врача)
•
Подпись
Забродин Н.А.
•
Бланк N 0638455
Формат А4. Бланк. Срок хранения 5 лет.
Общество с ограниченной ответственностью
Производственно-коммерческая фирма
“Урал Строй Панель”
Альбом технических решений
для массового применения в строительстве конструкций
на основе термоструктурных панелей системы “Ильдис Баттс”
по ТУ 5284-001-24522523-2006
Ижевск, 2006г.
ДатаПодпись№док.ЛистКол.уч
.
Изм.
Лист
2
ПОЯСНИТЕЛЬНАЯ ЗАПИСКА.
1. Общие положения. Область применения.
Данный альбом разработан на основании технического задания, утвержденного ООО ПКФ «Урал Строй Панель».
Альбом содержит общие сведения и основные характеристики конструкционных термоструктурных панелей системы
«Ильдис Баттс», выпускаемых по ТУ 5284-001-24522523-2006. В альбоме приведены разработанные на стадии технических
решений рекомендации по применению в строительстве и принципиальные узлы зданий с использованием данных панелей.
Все права на разработку и изготовление панелей принадлежат ООО ПКФ «Урал Строй Панель».
Адрес производства: Удмуртский филиал ООО ПКФ «Урал Строй Панель», Удмуртская Республика, г. Ижевск,
ул. Пойма, 29.
Панели предназначены для применения в жилых, общественных и производственных зданиях и сооружениях в каче-
стве несущих наружных и внутренних стен, перегородок, междуэтажных и чердачных перекрытий, а также совмещен-
ных кровельных покрытий с обязательной облицовкой наружных и внутренних поверхностей листовыми и другими
материалами, соответствующими требованиям санитарных и противопожарных норм. Материалы для облицовки сле-
дует назначать в рабочих чертежах в зависимости от назначения панелей и требований к их наружной и внутренней
отделке.
Панели допускается применять в зданиях V – II степеней огнестойкости, с нормальным температурно – влажностным ре-
жимом внутри помещений, с неагрессивной или слабоагрессивной средами, с категориями производства по пожарной
опасности В, Г, Д согласно НПБ 105. Применение панелей в зданиях с категориями производства по пожарной опасности А
и Б допустимо при условии разработки в проектной документации мероприятий по взрывопожарной безопасности для дан-
ных категорий зданий.
Панели имеют предел огнестойкости REI 15 и нулевой предел распространения огня. При использовании панелей для
конструктивных элементов зданий, требующих в соответствии со СНиП 21-01 предела огнестойкости более
REI 15, следует предусматривать дополнительные мероприятия по огнезащите (облицовка несгораемыми материалами –
гипсокартонные, гипсоволокнистые листы и др.).
ДатаПодпись№док.ЛистКол.уч
.
Изм.
Лист
3
Панели представляют собой однослойную конструкцию, состоящую из несущих стальных оцинкованных профилей, моно-
литно связанных с внутренним заполнением из негорючих минераловатных плит. Связь заполнения с несущими профиля-
ми, а также связь слоев минераловатных плит между собой осуществляется с помощью клеевых соединений. Расположение
стальных элементов каркаса в теле панели исключает воможность образования мостиков холода в самих панелях и мон-
тажных стыках.
Номенклатура конструкционных термоструктурных панелей «Ильдис Баттс» включает в себя: панели рядовые, предназна-
ченные для глухих участков стен, перекрытий и покрытий; угловые панели; панели – перемычки (надоконные); доборные
панели, предназначенные для примыкания к оконным, дверным проемам, кровельным и другим конструкциям.
Панели выпускаются двух стандартных толщин: 100 мм и 150 мм. Монтажная ширина панелей 500 мм, длина – до 2800
мм.
Каркасы панелей производятся из гнутых стальных профилей, для изготовления которых применяется оцинкованная лис-
товая сталь по ГОСТ 14918-80 толщиной не менее 1 мм.
Для изготовления панелей применяется плитный минераловатный гидрофобизированный утеплитель плотностью от
100 до 200 кг/м3
класса горючести НГ, выпускаемый ЗАО «Завод Минплита» согласно ТУ 5762-001-51496528-04 или дру-
гой марки с аналогичными характеристиками.
Для типовых стеновых панелей плотность слоев утеплителя составляет от 100 до 150 – 175 кг/м3
. Допускается применение
в качестве среднего слоя стеновых панелей плитного минераловатного гидрофобизированного утеплителя плотностью не
менее 75 кг/м3
.
Для кровельных панелей и панелей перекрытия применяется утеплитель плотностью всех слоев не менее 175 кг/м3
.
Кровельные панели и панели перекрытия выпускаются в основном толщиной 150 мм, с целью обеспечения требуемых те-
плотехнических и прочностных характеристик. Для предотвращения местных деформаций от вертикальных нагрузок кро-
вельные панели и панели перекрытия имеют элементы жесткости из стальных пластин толщиной не менее 1 мм, соеди-
няющие нижний и верхний направляющие профили. Элементы жесткости изготавливаются из листовой оцинкованной ста-
ли по ГОСТ 14918-80.
Конструктивное решение стенового ограждения обеспечивает возможность устройства оконных и дверных проемов всех
основных типоразмеров с типовым или индивидуальным заполнением из дерева, ПВХ или алюминия. При необходимости
устройства ворот они должны крепиться к раме ворот из стальных профилей, установленной на фундамент или силовой
пол.
ДатаПодпись№док.ЛистКол.уч
.
Изм.
Лист
4
Оконные и дверные блоки следует крепить к стальным направляющим профилям панелей или к элементам обрамления
проема.
Предусмотрено два варианта заполнения надоконного пространства: 1) заполнение рядовыми панелями с опиранием на
стальной или деревянный надоконный ригель (обрамление); 2) установка надоконных панелей – перемычек. Ширина надо-
конных панелей – перемычек от 200 до 500 мм, длина – по ширине проема, но не более 2000 мм.
Надоконные панели (перемычки) имеют нижнее (надоконное) обрамление из двух уголков, соединенных с вертикальными
несущими профилями каркаса. Крайние профили каркаса располагаются аналогично стеновым панелям. Для обеспечения
прочности на изгиб в надоконной панели предусмотрены также промежуточные швеллерные профили, устанавливаемые с
шагом не более 500 мм. Для включения панели – перемычки в работу необходимо при монтаже обеспечить надежное со-
единение всех вертикальных профилей панели с верхним обрамлением (обвязкой) из стальных уголков, а также крепление
уголков нижнего обрамления к вертикальным направляющим профилям примыкающих к проему стеновых панелей. Несу-
щая способность панели – перемычки обусловлена, в основном, прочностью резьбовых соединений профилей между собой.
Рекомендуется применение самонарезающих винтов диаметром не менее 4,2 мм (допустимое срезающее усилие на винт =
170 кг при толщине профилей 1 мм), по 2 шт. на одно соединение.
Крепежные изделия (винты самонарезающие) следует применять оцинкованные. Винты должны соответствовать требова-
ниям ТУ 67-637. Допускается применение других крепежных изделий с аналогичными характеристиками (винты по DIN
7504, ТУ 36.25.12 и др.).
Материалы, применяемые для изготовления панелей, удовлетворяют требованиям соответствующих государственных
стандартов и технических условий.
2. Теплотехнические характеристики.
ДатаПодпись№док.ЛистКол.уч
.
Изм.
Лист
5
Применение эффективного утеплителя обеспечивает высокие теплозащитные свойства конструкционных термоструктур-
ных панелей «Ильдис Баттс». Фактическое значение коэффициента теплопроводности применяемых минераловатных плит
составляет не более 0,037 – 0,042 Вт , что позволяет использовать их при изготовлении
м х 0
С
панелей для ограждающих конструкций всех основных типов зданий.
Расчетные требуемые теплотехнические характеристики панелей приведенны в таблице № 1.
Основными параметрами являются:
R0 - требуемое сопротивление теплопередаче ограждающей конструкции, м2
х 0
С;
Вт
λ – коэффициент теплопроводности утеплителя, Вт ;
м х 0
С
δ – толщина утеплителя, мм.
Теплотехнические характеристики рассчитаны для следующих климатических
условий:
- расчетная зимняя температура наружного воздуха tв = -350
С;
- расчетная температура внутреннего воздуха tн = +180
С;
- градусо – сутки отопительного периода ГСОП = 5544 0
С х сут.
Таблица № 1. Требуемые теплотехнические характеристики панелей.
Параметры: R0 min / λ max / δ утепл.
для конструктивных элементов зданий:
Назначение зданий
(помещений)
стен покрытий
совмещенных
покрытий
чердачных
Приме-
чание
Жилые 3,34/0,044/150 ------- 4,39/0,044/
200*
*
δ=150 с доп.
Слоем δ= 50
ДатаПодпись№док.ЛистКол.уч
.
Изм.
Лист
6
Общественные 2,86/0,051/150 3,82/0,038/150 3,24/0,046/150
Производственные 2,11/0,048/100 2,89/0,051/150 2,11/0,049/100
3. Прочностные характеристики.
Расчетная несущая способность конструкционных термоструктурных панелей «Ильдис Баттс» позволяет применять их в
качестве несущих конструкций зданий высотой до двух этажей при расчетных пролетах панелей перекрытий до 2,5 м и вы-
сотах этажей до 2,8 м.
Применение данных панелей возможно также для одноэтажных одно- и многопролетных зданий высотой до 4 м, перекры-
ваемых легкими стропильными конструкциями (стальными или деревянными балками и фермами). Допустимый пролет
стропильных конструкций для V снегового района из условия максимальных нагрузок на стеновые панели: при шаге ферм
1,5 м – до 6 метров; при шаге ферм 1,0 м – до 8 метров.
Расчетные нагрузки на панели не должны превышать расчетную несущую способность панелей, указанную в таблице № 2.
Передача вертикальных нагрузок на панели должна осуществляться:
- на стеновые и надоконные панели – по стыкам стеновых панелей, через распределяющие нагрузку элементы (обвязку
из деревянного бруса или стальных обрамляющих уголков), закрепленные к направляющим стальным профилям пане-
лей;
- на панели перекрытия – через жесткий настил пола, опирающийся на направляющие стальные профили панелей;
- на панели покрытия – через кровельное покрытие (профилированный стальной настил или другой жесткий кровель-
ный материал).
Нормативное ветровое давление принято для ветрового района II и составляет 30 кг/м2
.
Величина прогиба от действия нормативной равномерно распределенной нагрузки не превышает 1/150 расчетного проле-
та панели.
Расчетная несущая способность панелей определена:
ДатаПодпись№док.ЛистКол.уч
.
Изм.
Лист
7
- для стеновых панелей – по расчету на центральное сжатие с коэффициентом
расчетной длины µ = 2;
- для панелей перекрытия, покрытия и надоконных панелей – по расчету на изгиб по схеме шарнирно опертой балки на
двух опорах.
В таблице № 2 приняты обозначения:
L – длина панели (расчетный пролет);
H – высота стеновой (ширина надоконной) панели;
δ – толщина панели.
Все размеры в мм.
Таблица № 2. Расчетная несущая способность основных типов панелей.
Расчетная нагрузкаТип панели
сжатие, кг/м изгиб, кг/м2
Примечание
1. Стеновая панель
δ =100, Н = 2800
2800 --------
2. Стеновая панель
δ =150, Н = 2800
7000 --------
3. Стеновая панель
δ =150, Нmax = 4000
3800 -------- Прим. П. 1.
4. Надоконная панель
δ =100, Н = 250,
L = 2000
-------- 980 На 1 п.м.
панели.
(Прим. п. 2)
5. Надоконная панель
δ =150, Н = 300,
L = 2000
-------- 1220 На 1 п.м.
панели.
(Прим. п. 2)
ДатаПодпись№док.ЛистКол.уч
.
Изм.
Лист
8
6. Панель перекрытия
δ =100, L = 2500
-------- 370
7. Панель перекрытия
δ =150, L = 2500
-------- 675
Примечания.
1. Стеновая панель по п. 3 таблицы № 2 рассчитана для одноэтажных одно- и многопролетных зданий, перекрываемых
легкими стропильными конструкциями (фермами). В расчете учтено распределение сосредоточенных опорных реак-
ций смежных ферм на две стеновые панели, что должно быть обеспечено конструктивным решением узла (распре-
деление через обвязку).
2. Надоконные панели (панели – перемычки) рекомендуется крепить к вертикальным направляющим профилям стено-
вых панелей самонарезающими винтами диаметром от 4,2 мм (допустимое срезающее усилие на винт
= 170 кг при толщине профилей 1 мм), по 2 шт. на одно соединение. Шаг промежуточных вертикальных направ-
ляющих профилей панели – не более 500 мм.
3. Расчетная несущая способность панелей, указанная в таблице № 2, должна быть подтверждена результатами испыта-
ний на центральное сжатие и поперечный изгиб. Испытания следует проводить в соответствии с
технологическим регламентом испытаний по программе и методике предприятия – изготовителя.
4. Безопасность и охрана окружающей среды.
Степень огнестойкости зданий и сооружений с применением панелей – II по СНиП 21-01.
Утеплитель панелей относится к группе негорючих (НГ) материалов по ГОСТ 30244.
Среда производства – неагрессивная или слабоагрессивная по СНиП 2.03.11.
ДатаПодпись№док.ЛистКол.уч
.
Изм.
Лист
9
Категория размещаемых производств по пожарной опасности – А, Б, В, Г, Д согласно НПБ 105.
Производственный процесс изготовления панелей и комплектующих изделий осуществляется в соответствии с требова-
ниями ГОСТ 12.3.002.
При производстве панелей основными вредными факторами являются пыль минерального волокна и летучие компоненты
синтетического связующего.
Предельно допустимые концентрации (ПДК) в воздухе рабочей зоны приняты в соответствии с ГН.2.2.5.686.
Периодичность контроля по основным вредным факторам в воздухе рабочей зоны – 1 раз в квартал.
Все работы по производству панелей должны проводятся на участках, снабженных местной и общей приточно – вытяжной
вентиляцией, обеспечивающей чистоту воздуха рабочей зоны. Содержание вредных веществ в воздухе рабочей зоны не
превышает установленные ПДК.
В процессе эксплуатации в готовом здании или сооружении панели не выделяют вредные химические вещества выше
ПДК среднесуточной для атмосферного воздуха, установленной требованиями ГН2.1.6.695, при условии отсутствия непо-
средственного контакта утеплителя с внутренним воздухом помещений. Отделка внутренних и наружных поверхностей па-
нелей облицовочными материалами, разрешенными к применению в жилых зданиях, обязательна.
Периодичность контроля готовой продукции по показателям безопасности – не реже одного раза в 12 месяцев.
5. Монтаж и эксплуатация.
Технологичность строительства зданий из конструкционных термоструктурных панелей «Ильдис Баттс» достигается за
счет следующих основных факторов:
ДатаПодпись№док.ЛистКол.уч
.
Изм.
Лист
10
1) Масса панелей, в зависимости от плотности применяемого утеплителя, ориентировочно составляет от 30 до 50 кг, что
позволяет вести монтаж вручную, без применения грузоподъемных механизмов.
2) Небольшие габаритные размеры панелей, что упрощает их установку в проектное положение, временную фиксацию и
выверку.
3) Конструкция монтажных узлов с использованием креплений через стальные соединительные пластины на самонаре-
зающих винтах не требует высокой квалификации персонала, применения сварочного оборудования, «мокрых» техно-
логических процессов.
4) Конструкция стыков панелей практически не требует дополнительного уплотнения на площадке.
5) В связи с легкостью конструкций и их устойчивостью к осадочным деформациям отсутствие необходимости в массив-
ных фундаментах. Возможность строительства при практически любых инженерно – геологических условиях площад-
ки.
Монтаж и эксплуатация панелей должны осуществляться в соответствии со СНиП 3.03.01, рабочей документацией и инст-
рукцией по монтажу и эксплуатации. Монтаж панелей необходимо выполнять с помощью соединительных деталей в соот-
ветствии с монтажными узлами, разработанными в рабочей документации.
Ударные нагрузки, деформации направляющих профилей при монтаже не допускаются. Поврежденное антикоррозионное
покрытие должно быть восстановлено.
При монтаже, транспортировании и хранении необходимо предохранять утеплитель панелей от увлажнения атмосферны-
ми осадками.
Основные конструктивные решения монтажных узлов:
1) Установка нижнего яруса стеновых панелей выполняется на выверенную горизонтальную поверхность обреза лен-
точного фундамента через стальной гнутый профиль углового или швеллерного сечения или деревянный обвязочный
брус, закрепленные к фундаменту.
2) Все стеновые панели крепятся к нижней обвязке и по высоте между собой, в том числе в углах, через стальные со-
единительные элементы из оцинкованной стали толщиной не менее 1 мм на самонарезающих оцинкованных винтах.
ДатаПодпись№док.ЛистКол.уч
.
Изм.
Лист
11
Допускается изготовление соединительных деталей из листовой стали по ГОСТ 19903-74 или полосовой стали по
ГОСТ 103-76 с антикоррозионным покрытием в соответствии с требованиями СНиП 2.03.11, ГОСТ 9.032.
3) Для образования жесткой неизменяемой системы все стеновые панели каждого яруса должны быть соединены по
верху устанавливаемой по периметру обвязкой из стальных обрамляющих гнутых уголков и деревянного бруса тол-
щиной не менее 40 мм. Направляющие профили каждой панели в обязательном порядке должны быть закреплены к
верхней обвязке.
4) Панели перекрытий и покрытия, балки, стропильные конструкции устанавливаются на верхнюю обвязку с обязатель-
ным креплением к ней через стальные соединительные элементы.
5) Длина продольных стен здания ограничивается только длиной температурного отсека (не менее 60 м) при условии
раскрепления верха стен сплошным настилом из панелей перекрытия или стропильными конструкциями, установ-
ленными с шагом не более 1,5 м.
Кроме того, в соответствии с рабочей документацией на строительство здания при монтаже должны выполняться
следующие основные работы:
- обработка антипиренами и антисептирование деревянных конструкций;
- облицовка внутренних и наружных поверхностей панелей облицовочными материалами;
- устройство кровельного покрытия.
В процессе эксплуатации здания необходимо:
- не допускать превышения несущей способности панелей (перегрузку);
- не допускать превышения степени агрессивности внутренней среды здания;
- производить своевременный ремонт конструкций и облицовочных покрытий.
При соблюдении потребителем условий транспортирования, хранения, монтажа панелей и эксплуатации здания
нормативный срок службы панелей составляет не менее 20 лет.
ДатаПодпись№док.ЛистКол.уч
.
Изм.
Лист
12
6. Номенклатура изделий.
Таблица № 4. Номенклатура панелей.
Номинальные размеры панелей, ммУсловное обозначение
(марка) панели длина ширина толщина
Примеча-
ние
1 2 3 4 5
1. Стеновые панели рядовые.
ПРД-2,5 2500 500 150
ПРП-2,5 2500 500 100
2. Стеновые панели угловые.
ПУД-2,5 2500 500 150
ПУП-2,5 2500 500 100
3. Стеновые панели надоконные.
ПНД-1,5/0,5 1500 500 150
ПНП-1,5/0,5 1500 500 100
4. Стеновые панели подоконные.
ПЦД-1,0 1000 500 150
ПЦП-1,0 1000 500 100
5. Стеновые панели доборные.
ПДДЛ-1,0 2500 500 150
ПДДП-1,0 2500 500 150
1,0-по
длине
ПЦД
П-правая
Л-левая
ДатаПодпись№док.ЛистКол.уч
.
Изм.
Лист
13
ПДП-1,5/0,3 1500 300 100
6. Панели проема
ППЛ-2,5 2500 500 150
ППП-2,5 2500 500 150
Структура условного обозначения панелей:
ДатаПодпись№док.ЛистКол.уч
.
Изм.
Лист
14
7. Графические материалы.
ПРД-2,5
Панель Рядовая Толщина 150 (Дом)
Длина 2,5м
ПРП-2,5
Панель Рядовая
Толщина 100
(Павильон)
Длина 2,5м
ДатаПодпись№док.ЛистКол.уч
.
Изм.
Лист
15
ОСНОВНЫЕ ТЕХНИЧЕСКИЕ РЕШЕНИЯ
КОНСТРУКЦИОННЫХ ТЕРМОСТРУКТУРНЫХ ПАНЕЛЕЙ
И МОНТАЖНЫХ УЗЛОВ
Лист
Изм.Лист№док.ПодписьДатаКол.уч.
Схемапоперечного
разреза
Схемапланаэтажа
Ст1
Ст1
Ст2
Ст1
Ст2
Лист
Изм.Лист№док.ПодписьДатаКол.уч.
Рядоваяпанельтолщиной100мм
Рядоваяпанельтолщиной150мм
Ст1Ст2
Ст1
Ст1
Ст1
Лист
Изм.Лист№док.ПодписьДатаКол.уч.
А
ВидАРядоваяпанельтолщиной100(150)мм
Ст3
Ст1
Ст2
Лист
Изм.Лист№док.ПодписьДатаКол.уч.
Угловаяпанельтолщиной150мм
Ст1
Лист
Изм.Лист№док.ПодписьДатаКол.уч.
Угловаяпанельтолщиной150мм
Лист
Изм.Лист№док.ПодписьДатаКол.уч.
Доборнаяпанель
толщиной150мм
Ст1
Лист
Изм.Лист№док.ПодписьДатаКол.уч.
Доборнаяпанель
толщиной100мм
Доборнаяпанель
толщиной150мм
Ст1Ст1Ст2
Ст2Ст1
Ст2Ст1
Уг1
Ст2Ст1Ст2Ст2
Лист
Изм.Лист№док.ПодписьДатаКол.уч.
Надоконнаяпанель(панель-перемычка)толщиной150мм
Ст2Ст1
Уг1
Ст2Ст1
Ст1Ст2
Лист
Изм.Лист№док.ПодписьДатаКол.уч.
Надоконнаяпанель(панель-перемычка)толщиной100мм
Б-Б
кл.
Уг2
Ст2,шаг500
Уг1
A-A
кл.
Лист
Изм.Лист№док.ПодписьДатаКол.уч.
Надоконнаяпанель(панель-перемычка)толщиной150мм
-0.100
Брус40x100
(Брус40x150)
-0.100
Брус40x100
(Брус40x150)
Брус50x100
(Брус50x150)
Панель-перемычка
+0.900
+2.300
УГ1
Панель-перемычка
УГ1
Панельпроема
Панельпроема
Лист
Изм.Лист№док.ПодписьДатаКол.уч.
Разверткастены
соконнымпроемом
Разверткастенысдверным
проемом
Лист
Изм.Лист№док.ПодписьДатаКол.уч.
Панельпроема
Рядоваяпанель
Подоконная
панель
+2.700
Доборнаяпанель
-0.100
Рядоваяпанель
Брус40х100
(Брус40х150)УГ2(УГ1)
Н1
самонарезающие
винты
Брус50х100
(Брус50х150)
УГ1(УГ2)Обвязочныйбрус
40х150
Брус50х100
(Брус50х150)
Разверткастены
Брус50х100
(Брус50х150)
(обрамляющийуголок)
Брус40х100
(Брус40х150)
Узелкрепленияобвязочного
брусакстеновойпанели
Разверткастенысоконным
проемом
УГ2(УГ1)
А
Лист
Изм.Лист№док.ПодписьДатаКол.уч.
Рядоваяпанель
Подоконная
панель
Панель-перемычка
-0.100
Рядоваяпанель
Доборная
панель
+2.400
Панель-перемычка
-0.100
+2.200
+1.000
(+1.100)
(+1.200)
Доборнаяпанель
(+2.300)
+2.700(+2.400)
Брус50х100
(Брус50х150)
Брус50х100
(Брус50х150)
Разверткастеныс
двернымпроемом
Брус40х100
(Брус40х150)
Брус40х100
(Брус40х150)
Разверткастены
соконнымпроемом
Брус50х100
(Брус50х150)
УГ2(УГ1)
УГ2(УГ1)
Лист
Изм.Лист№док.ПодписьДатаКол.уч.
шаг600мм
шаг600мм
самонарезающий
винт
Н1
самонарезающий
винт
Узелстыкарядовых
панелейтолщиной100мм.
1
шаг600мм
самонарезающий
винт
самонарезающий
винтшаг600мм
1
Узелстыкарядовых
панелейтолщиной150мм.
Н1
Н1
Н1
Лист
Изм.Лист№док.ПодписьДатаКол.уч.
Н1
шаг600мм
Узелугловогостыка
панелейтолщиной100мм.
Н1
НУ1,шаг600мм
самонарезающий
винт
самонарезающий
винт
2
самонарезающий
винт
самонарезающий
винт
Вариантузлаугловогостыка
панелейтолщиной150мм
Н1,шаг600мм
Ст3
2
Н1,шаг600мм
Лист
Изм.Лист№док.ПодписьДатаКол.уч.
0.000
Ур.ч.п.
-0.100
0.000
Ур.ч.п.
-0.100
Креплениестены
черезобвязку
Креплениестены
вжелоб
Н1
Н1
НП2(НП1)
Анкерныйболт
самонарезающий
винт
Анкерныйболт
(150)
Конструкцияпола
3
самонарезающий
винт
(150)
Гвоздь(шуруп)
Обвязочныйбрус
50х100(50x150)
Конструкция
пола
3
Лист
Изм.Лист№док.ПодписьДатаКол.уч.
0.000
-0.100
Ур.ч.п.
3
Креплениестены
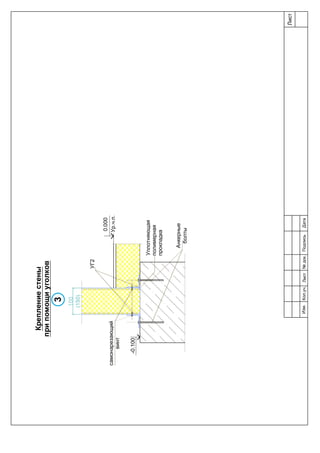
припомощиуголков
УГ2
самонарезающий
винт
Уплотняющая
полимерная
прокладка
Анкерные
болты
(150)
Лист
Изм.Лист№док.ПодписьДатаКол.уч.
8
УГ1(УГ2)
Креплениеперекрытия
истеновойпанели
Н1
шаг600мм
Обвязочныйбрус
40х150
УГ1
самонарезающие
винты
Обвязочныйбрус
50х150
самонарезающие
винты
самонарезающие
винты
Гвоздь(шуруп)
УГ2
L=100мм
Н1
Гвоздь(шуруп)
самонарезающие
винты
Мауэрлат
(100х100)
Конструкции
кровли
Гвоздь(шуруп)
самонарезающие
винты
Обвязочныйбрус
50х150
Креплениекрыши(кровли)
истеновойпанелисустройствомчердака
9
УГ2
Н1
УГ1
Лист
Изм.Лист№док.ПодписьДатаКол.уч.
Сопряжениенаружной
ивнутреннейстены.
10
Сопряжениенаружной
ивнутреннейстены.
самонарезающий
винт
НП1
10
самонарезающий
винт
самонарезающий
винтНП2
Сопряжениенаружной
ивнутреннейстены.
11
НП1
Лист
Изм.Лист№док.ПодписьДатаКол.уч.
Детальустановкиоконногоблока
Детальустановкиоконногоблока
Профильоконной
рамы
Профильоконной
рамы
Заполнение
мин.ватой
Заполнение
мин.ватой
Заполнение
мин.ватой
Заполнение
мин.ватой
Внутренняя
облицовка
Внутренняя
облицовка
Шуруп
Шуруп
Шуруп
Шуруп
Внутренняя
облицовка
Внутренняя
облицовка
Наружная
облицовка
Наружная
облицовка
Наружная
облицовка
Наружная
облицовка
4
4
УГ2
УГ2
Лист
Изм.Лист№док.ПодписьДатаКол.уч.
Наружная
облицовка
Наружная
облицовка
Внутренняя
облицовка
УГ2(УГ1)
обрамление
Монтажная
пена
Подоконная
доска
Монтажная
пена
Внутренняя
облицовка
Профильоконного
блока
Профильоконной
рамы
Самонарезающий
винт
Самонарезающий
винт
оцинк.сталь
оцинк.сталь
(150)
Детальустановкиоконногоблока
сиспользованиемпанели-перемычки
(1-йвариант)
Накладка
Накладка
Дверной
блок
Наружная
облицовка
Внутренняя
облицовка
Самонарезающий
винт
оцинк.сталь
Детальустановкидверногоблока
прииспользованиипанели-перемычки
(1-йвариант)
(150)
Панель-перемычка
Монтажная
пена
Панель-перемычка
57
Лист
Изм.Лист№док.ПодписьДатаКол.уч.
Детальустановкидверногоблока
Детальустановкидверногоблока
Брустолщ.50ммБрустолщ.50мм
Дверной
блокДверной
блок
Дверной
блок
Дверной
блок
Шуруп
УГ2
Шуруп
ШурупШуруп
Заполнение
мин.ватой
(длярядовойпанели)
Заполнение
мин.ватой
Внутренняя
облицовка
Внутренняя
облицовка
Внутренняя
облицовка
Внутренняя
облицовка
Наружная
облицовка
Наружная
облицовка
Наружная
облицовка
Наружная
облицовка
Рядоваяпанель
(Доборнаяпанель)
Рядоваяпанель
(Доборнаяпанель)
6
6
УГ2
Лист
Изм.Лист№док.ПодписьДатаКол.уч.
Наружная
облицовка
Наружная
облицовка
Внутренняя
облицовка
УГ2(УГ1)
обрамление
Монтажная
пена
Подоконная
доска
Монтажная
пена
Внутренняя
облицовка
Профильоконного
блока
Профильоконной
рамы
Самонарезающий
винт
Самонарезающий
винт
оцинк.сталь
оцинк.сталь
(150)
Детальустановкиоконногоблока
сиспользованиемпанели-перемычки
(1-йвариант)
Накладка
Накладка
Дверной
блок
Наружная
облицовка
Внутренняя
облицовка
Самонарезающий
винт
оцинк.сталь
Детальустановкидверногоблока
прииспользованиипанели-перемычки
(1-йвариант)
(150)
Панель-перемычка
Монтажная
пена
Панель-перемычка
57
Лист
Изм.Лист№док.ПодписьДатаКол.уч.
Детальустановкиоконногоблока
Детальустановкиоконногоблока
Профильоконной
рамы
Профильоконной
рамы
Заполнение
мин.ватой
Заполнение
мин.ватой
Заполнение
мин.ватой
Заполнение
мин.ватой
Внутренняя
облицовка
Внутренняя
облицовка
Шуруп
Шуруп
Шуруп
Шуруп
Внутренняя
облицовка
Внутренняя
облицовка
Наружная
облицовка
Наружная
облицовка
Наружная
облицовка
Наружная
облицовка
4
4
УГ2
УГ2
Лист
Изм.Лист№док.ПодписьДатаКол.уч.
Детальустановкидверногоблока
Детальустановкидверногоблока
Брустолщ.50ммБрустолщ.50мм
Дверной
блокДверной
блок
Дверной
блок
Дверной
блок
Шуруп
УГ2
Шуруп
ШурупШуруп
Заполнение
мин.ватой
(длярядовойпанели)
Заполнение
мин.ватой
Внутренняя
облицовка
Внутренняя
облицовка
Внутренняя
облицовка
Внутренняя
облицовка
Наружная
облицовка
Наружная
облицовка
Наружная
облицовка
Наружная
облицовка
Рядоваяпанель
(Доборнаяпанель)
Рядоваяпанель
(Доборнаяпанель)
6
6
УГ2
Лист
Изм.Лист№док.ПодписьДатаКол.уч.
Накладка
Дверной
блокГвоздь
(шуруп)
Дверной
блок
Наружная
облицовка
Внутренняя
облицовка
Монтажная
пена
Самонарезающий
винт
Накладка
оцинк.сталь
Детальустановкидверногоблока
(2вариант)
Наружная
облицовка
Монтажная
пена
Внутренняя
облицовка
УГ2(УГ1)
обрамление
Самонарезающий
винт
оцинк.сталь
Детальустановкидверногоблока
(1-йвариант)
(150)
(150)
77
Лист
Изм.Лист№док.ПодписьДатаКол.уч.
Сертификаты
Сертификаты
Сертификаты

Сертификаты