LOUNGE/DINNINGROOMLIBRARYCHIROPODYROOMHALLWAYHALLWAY
123456
123456
COURTYARD
7950795067507950
10mmPOLISHEDCONCRETEon
350mmFOUNDATIONon
TWOLAYERSOF150mmHARDCORECOMPACT
2.5mmLINORETTEon
3.2mmUNIWALTONon
2.5mmMARMORETTEon
100mmSCREEDon
100mmINSULATIONon
D.P.C.on
RAFTFOUNDATIONon
TWOLAYERSOF150mmHARDCORECOMPACT
2.5mmLINORETTEon
3.2mmUNIWALTONon
2.5mmMARMORETTEon
100mmSCREEDon
100mmINSULATIONon
D.P.C.on
RAFTFOUNDATIONon
TWOLAYERSOF150mmHARDCORECOMPACT
10mmPOLISHEDCONCRETEon
350mmFOUNDATIONon
TWOLAYERSOF150mmHARDCORECOMPACT2.5mmLINORETTEon
3.2mmUNIWALTONon
2.5mmMARMORETTEon
100mmSCREEDon
100mmINSULATIONon
D.P.C.on
RAFTFOUNDATIONon
TWOLAYERSOF150mmHARDCORECOMPACT
18mmTIMBERCLADDINGon
50x50mmHORIZONTALTIMBERBATTENon
50x50mmVERTICALTIMBERBATTENon
13mmPLYWOODon
BREATHERMEMBRANEon
150mmMETALSTUDWITHQUILTEDINSULATIONon
VAPOURCHECKon
13mmPLYWOODon
18mmPLASTERBOARD
5mmSTOVRENDER
13mmPLYWOODon
50x50mmVERTICALTIMBERBATTENon
50x50mmHORIZONTALTIMBERBATTENon
13mmPLYWOODon
BREATHERMEMBRANEon
150mmMETALSTUDWITHQUILTEDINSULATIONon
VAPOURCHECKon
13mmPLYWOODon
18mmPLASTERBOARD
18mmPLASTERBOARDon
13mmPLYWOODon
BREATHERMEMBRANEon
150mmMETALSTUDWITHQUILTEDINSULATIONon
VAPOURCHECKon
13mmPLYWOODon
18mmPLASTERBOARD
5mmSTOVRENDER
13mmPLYWOODon
50x50mmVERTICALTIMBERBATTENon
50x50mmHORIZONTALTIMBERBATTENon
13mmPLYWOODon
BREATHERMEMBRANEon
150mmMETALSTUDWITHQUILTEDINSULATIONon
VAPOURCHECKon
13mmPLYWOODon
18mmPLASTERBOARD
DR1-33DR1-05
4441 1205
5469
5368
4801
4439
5005
4439
5079
5357
4439
5649
4439
TOPSHEETKALZIP65/400PROFILEon
STLHALTERSCLIPSon
STL190WITHTK15THERMALBARRIERPADFOR
ROOFon
KALZIPTHERMALINSULATIONon
VAPOURCONTROLLAYERon
METALDECKINGon
STEELPURLINS
SUSPENDEDHANGERWIREon
SUSPENDEDCELINGCOVERS
6750
TOPSHEETKALZIP65/400PROFILEon
STLHALTERSCLIPSon
STL190WITHTK15THERMALBARRIERPADFOR
ROOFon
KALZIPTHERMALINSULATIONon
VAPOURCONTROLLAYERon
METALDECKINGon
STEELPURLINS
SUSPENDEDHANGERWIREon
SUSPENDEDCELINGCOVERS
TOPSHEETKALZIP65/400PROFILEon
STLHALTERSCLIPSon
STL190WITHTK15THERMALBARRIERPADFOR
ROOFon
KALZIPTHERMALINSULATIONon
VAPOURCONTROLLAYERon
METALDECKINGon
STEELPURLINS
SUSPENDEDHANGERWIREon
SUSPENDEDCELINGCOVERS
+.120m
+.820m
+3.77m
+6.33m
+5.99m
+5.33m
+4.78m
+5.80m
+5.99m
+5.33m
+6.33m
+3.77m
+.820m
+.120m+.120m+.120m
+2.42m
5160
4773
DETAIL501
DETAIL503
DETAIL504DETAIL502
COURTYARD
A
A
18mmTIMBERCLADDINGon
50x50mmHORIZONTALTIMBERBATTENon
50x50mmVERTICALTIMBERBATTENon
13mmPLYWOODon
BREATHERMEMBRANEon
150mmMETALSTUDWITHQUILTEDINSULATIONon
VAPOURCHECKon
13mmPLYWOODon
18mmPLASTERBOARD
+5.43m
795079507950
39750
COURTYARD
123456
A
B
C
D
E
123456
HAIRDRESSER'S
COLDROOM/STORAGE
RECEPTION
FAMILYROOMLOCKER
LOUNGE/DINNINGROOM
AREA:127.7sqm
AREA:12.7sqmAREA:25.2sqm
OCCUPATIONALTHERAPYROOM
NURSERESTROOMDOCTOR
DISPENSARY
EQUIPMENTROOM
CHIROPODYROOM
PHYSIOTHERAPYROOM
AREA:17.8sqmAREA:39.7sqm
AREA:34.6sqm
AREA:34.6sqm
AREA:10.5sqm
AREA:32.5sqmAREA:22.9sqmAREA:15.3sqm
COURTYARD
LIBRARY
AREA:21.5sqm
AREA:31.3sqm
A
B
C
D
E
8598859892647935
A
A
B
B
WASHROOM
1
P301
FLOORFINISHLINO
F.F.L.100.20M.O.D.
FLOORFINISHLINO
F.F.L.100.20M.O.D.
FLOORFINISHLINO
F.F.L.100.20M.O.D.
FLOORFINISHLINO
F.F.L.100.20M.O.D.
FLOORFINISHLINO
F.F.L.100.20M.O.D.
FLOORFINISHLINO
F.F.L.100.20M.O.D.
CONSULTATIONROOM
AREA:19.1sqm
FLOORFINISHLINO
F.F.L.100.20M.O.D.
WHEELCHAIRTOILET
AREA:20.4sqm
FLOORFINISHTILE
F.F.L.100.20M.O.D.
FLOORFINISHLINO
F.F.L.100.20M.O.D.
FILEROOM
AREA:30.4sqm
FLOORFINISHLINO
F.F.L.100.20M.O.D.
FLOORFINISHLINO
F.F.L.100.20M.O.D.
TOILETS
AREA:4.5sqm
FLOORFINISH
TILE
F.F.L.100.20
M.O.D.
TOILETS
AREA:4.5sqm
FLOORFINISH
TILE
F.F.L.100.20
M.O.D.
AREA:8.1sqm
FLOORFINISHLINO
F.F.L.100.20M.O.D.
LAUNDRY
AREA:13.6sqm
FLOORFINISHLINO
F.F.L.100.20M.O.D.
AREA:26.4sqm
STAFFKITCHEN
FLOORFINISHTILE
F.F.L.100.20M.O.D.
TOILETS
AREA:4.9sqm
FLOORFINISH
TILE
F.F.L.100.20
M.O.D.
TOILETS
AREA:4.9sqm
FLOORFINISH
TILE
F.F.L.100.20
M.O.D.
AREA:18.6sqm
FLOORFINISHLINO
F.F.L.100.20M.O.D.
KITCHEN
AREA:34.6sqm
FLOORFINISHTILE
F.F.L.100.20M.O.D.
STOREROOM
AREA:11.0sqm
FLOORFINISHLINO
F.F.L.100.20M.O.D.
FLOORFINISHLINO
F.F.L.100.20M.O.D.
FLOORFINISHLINO
F.F.L.100.20M.O.D.
WHEELCHAIRTOILET
AREA:19.3sqm
FLOORFINISHTILE
F.F.L.100.20M.O.D.
FLOORFINISHLINO
F.F.L.100.20M.O.D.
STAFFOFFICE
AREA:18.3sqm
FLOORFINISHLINO
F.F.L.100.20M.O.D.
AREA:20.2sqm
FLOORFINISHLINO
F.F.L.100.20M.O.D.
AREA:69.7sqm
F.F.L.100.00M.O.D.
AREA:69.6sqm
F.F.L.100.00M.O.D.
FLOORFINISHLINO
F.F.L.100.20M.O.D.
2905
3354
215
1100
1892
3014
302
352
513 1096 479
5511
105
11811100
225
5159352
85
4143632517
3528
37711001892
162560
352
73
5321
38711001019
324 1100 10220
162
162
162
219
5511
513 1131
445
302
420
302
1340 1986 513
5511
5029
314
1050639
5673
3813219110011006361101692109912021100
162
219
5511
101321321014162888
320
352
352
274123439516213078811270162743812664
2840162
218
1519162311
236
162
237
310
162
220
5511
5511
162
5511
2968
1684
2968
1666
1622381
3458
1137 1100
145
162
3275
5160
5511
352
1137
192
1800
104
300
549
83
6203
3811100328711007051100653110010591625471
2332
6376
162
2853162
272290144272290144219
1059
162
5491
162
711878
12101013
174335732022991625169322
337 1047 1060 637 1871 1442
5177
1838
1059
162
3177
110021914416791679
38291059
1075 124
3078
3055
2062
144 2062
162
419
420 891 5146 420 1108 6520 550 352
99 1100 863
5584
1087
2515
8188
302
421 416 904 3978 3301 416 890 1800 169
254
312314
312
775
1578
775
9787
775
312
302
570
35865131622338162299
320210
21965131625133602436
7716277
4362702513162
524
2935360
304312
5673
255
11001862
162
15021100369011003812409110060011002804312
5511
114593
4971
22192193309219
219219
162
5511 314
55122051
312
92555841087
796416416583
302
352
5511
350
519162 4642 350
2409
3529601871180916211141764402464
890
162
302
312
77
5710
4761 4670
8190
38111004350110021501100260011002024
157
5511
4491144196516241841649801623706388
162
2062
1625159
1625465312713431225031745511314
3969
162
2191769219
5826 314
219
2515
5288
1623088162353816233381625511
300
5525
2237
5826
77
513
3011
2512513759
320
5361210513
1013
3802394
302
352
1177474110131621085
420
89429361013
2192037
6131
5826
1100
52
162
219
1100 433 148
302
162
352
5029
1087
58066141340416
134
254
10875584
381 1100 7431 1100 381
55846714
254
219
44952775
219
29921622056
272
566
2303
7134 9769
9770
775
1578 6611 1578
254
7755584
775
5584775
4176
7755584
4015
254
2261
2266
FLOORFINISHLINO
F.F.L.100.20M.O.D.
2476215900
859826709
24762
15900
7950 27357
DR1-01DR1-02
DR1-03DR1-04DR1-05
DR1-06
E XDR-02
DR1-08DR1-09DR1-10DR1-11
DR1-12DR1-13
DR1-14
DR1-22
DR1-15
DR1-16
DR1-17DR1-18DR1-19DR1-20DR1-21
DR1-23DR1-24DR1-25DR1-26
DR1-11
DR1-28DR1-27
DR1-29 DR1-30
E XDR-01
E XDR-03
WD-01
WD-02WD-03WD-04WD-05WD-06
WD-07WD-08WD-09WD-10
WD-11
WD-12WD-13WD-14WD-15WD-16
WD-17 WD-18 WD-19 WD-20 WD-21
WD-22WD-23WD-24
2
P301 3
P301
4
P301
STAFF
ENTRANCE
MAIN
ENTRANCE
ENTRANCE
DR1-31
108911001435
1800
828
103
7206
3611
100
3003
1800
1550329
E XDR-04
DR1-33
DR1-32
ENTRANCE
DETAIL505
DETAIL506
EXDR-05
123456
123456A
A
WD-06WD-02WD-03WD-04WD-05WD-22WD-23WD-24
WD-07WD-08WD-09WD-10
EXDR-03EXDR-04
ABCDE
ABCDE
WD-12WD-13WD-14WD-15WD-16WD-11
EXDR-05
WD-25
123456
123456
A
A
ABCDE
ABCDE
WD-01WD-17WD-18WD-19WD-20WD-21
EXDR-01
project:
DayCareCentre
SectionB-B
projectno.:
3
drawingno.:
402
drawingscale:
1:50
date:
03
05
12
drawingseries/issue:
Construction
by:**
lecturer:
EDMUNDJOYCE
WEXFORD
CAMPUS
studentname:PATRICKHIGGINS
studentnumber:C00124561
sheets5of9
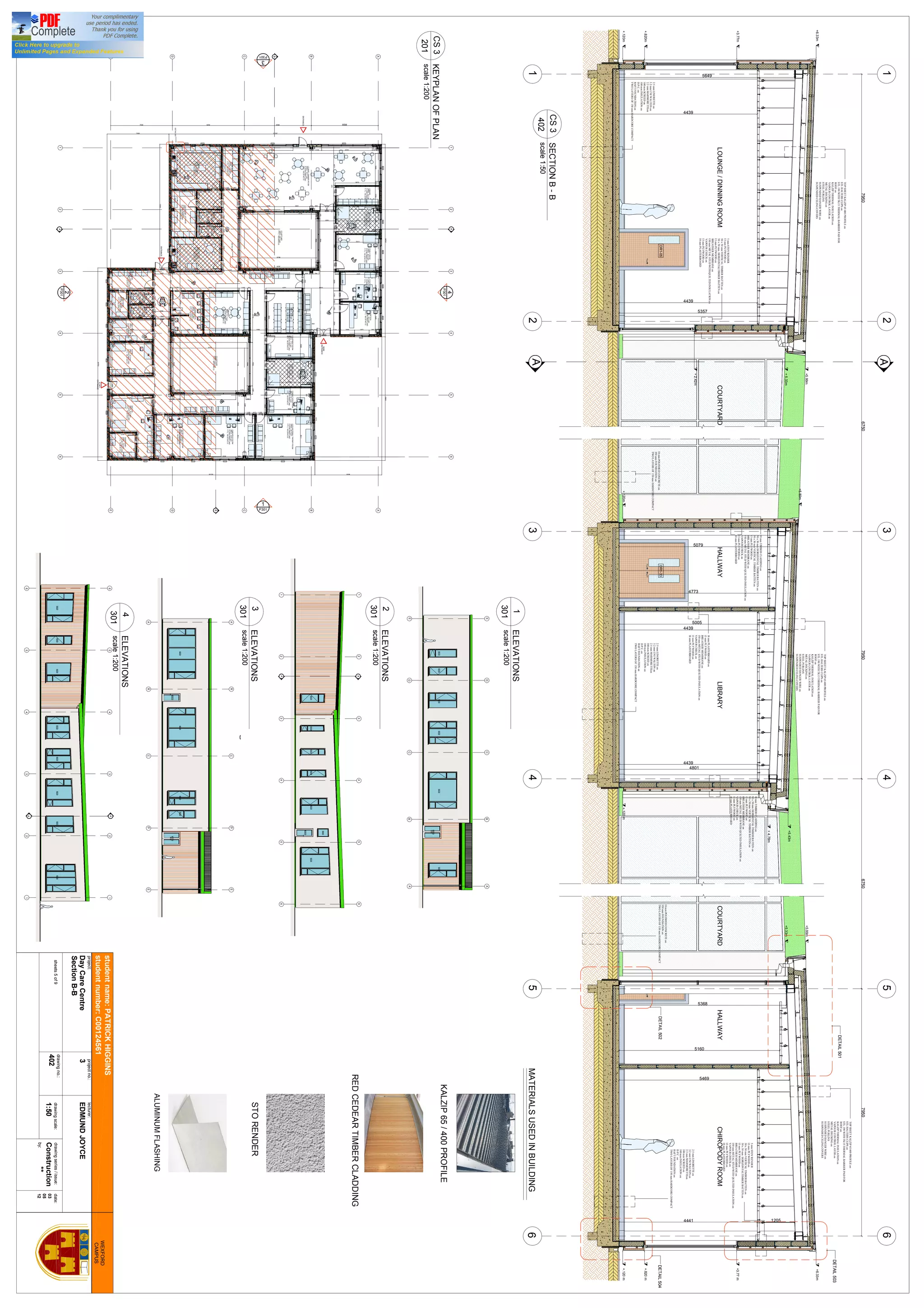
CS3
402
SECTIONB-B
scale1:50
CS3
201
KEYPLANOFPLAN
scale1:200
1
301
ELEVATIONS
scale1:200
MATERIALSUSEDINBUILDING
KALZIP65/400PROFILE
REDCEDEARTIMBERCLADDING
STORENDER
ALUMINUMFLASHING
2
301
ELEVATIONS
scale1:200
3
301
ELEVATIONS
scale1:200
4
301
ELEVATIONS
scale1:200

SECTION B-B