CARIBBEAN
W I N T E R
S C H O O L
C U B A
mark   |   ruth   |   yasser   |   martin
SCHOOL   +
I   D   E   A
SCHOOL

                  PUBLIC SPACE / SCHOOL




STREET
+
children                       +
                           public



school                     elderly people
communication
                           caféteria
own space
                           prepared food
mixed space
                           communication
connection to urban life
                           meeting point
                           acces to nurse / medicin


                           grown up

                           evening classes
                           language lessons
                           use of the workshop rooms
                           cultural events
GETTIN´
O L D E R
1,50 m




1,10 m




            4 years                       11 years




         protected area          classrooms locaded higher
         extra bathrooms         in the building
         sleeping place , beds   free space to move
         adjusted classrooms     specific rooms for further education
SITEPLAN
V I E W S
view from the street




view from the park
SECTIONS
section aa




section bb
section cc
F L O O R
P L A N S
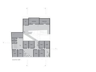
b                                 a
                                                                                                                    b




                              wc       nurse   pantry            dining                                                 libar




         administrator
         co-director                                                              material        teachers
                                                                                  storage         room



      wc
                                                                                     wc
c
      wc                                                                      c      wc


                                                                                                                class       c
                                                                          c
                                                        exhibition
                                                        box
     director     secretary
                  info

                                                                                          class         class




    ground floor 1|200                                                            first floor 1|200



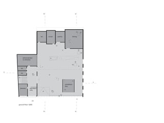
                                   b                                 a
                                                                                                                    b
b                            a




                                          libary                   caféteria
                                                                                                                wc




    material        teachers
    storage         room




       wc                                                                                 wc

c      wc
                                                                                   c      wc

                                                                                                               class
                                  class      class

                                                                               c




            class         class               class   pre-school                          class        class




    first floor 1|200                                                                  second floor 1|200




                                      b                            a
b                              a




                             wc          workshop          mixed use




       wc


c      wc                                                                        c

                            class     class            class         class



                                                                             c




       class        class                      class   class




    second floor 1|200                                                               third floor 1|200




                                  b                              a
b                     a




                                          sience       sience

                        pc lab   pc lab




c




                                                                c




    third floor 1|200




                             b                     a
A D AY AT
SCHOOL +
FA S A D E
flexibel fasade


south side                      north side
                n                                ht
             su                              lig




open                             open


                    turn



                n                                 h  t
             su                              l ig




closed                           closed
M O D E L
S E E Y O U AT T H E B E A C H . . .

School PLUS

  • 1.
    CARIBBEAN W I NT E R S C H O O L C U B A mark | ruth | yasser | martin
  • 2.
  • 3.
    I D E A
  • 8.
    SCHOOL PUBLIC SPACE / SCHOOL STREET
  • 9.
    + children + public school elderly people communication caféteria own space prepared food mixed space communication connection to urban life meeting point acces to nurse / medicin grown up evening classes language lessons use of the workshop rooms cultural events
  • 10.
  • 11.
    1,50 m 1,10 m 4 years 11 years protected area classrooms locaded higher extra bathrooms in the building sleeping place , beds free space to move adjusted classrooms specific rooms for further education
  • 12.
  • 14.
    V I EW S
  • 15.
    view from thestreet view from the park
  • 16.
  • 17.
  • 18.
  • 19.
    F L OO R P L A N S
  • 20.
    b a b wc nurse pantry dining libar administrator co-director material teachers storage room wc wc c wc c wc class c c exhibition box director secretary info class class ground floor 1|200 first floor 1|200 b a b
  • 21.
    b a libary caféteria wc material teachers storage room wc wc c wc c wc class class class c class class class pre-school class class first floor 1|200 second floor 1|200 b a
  • 22.
    b a wc workshop mixed use wc c wc c class class class class c class class class class second floor 1|200 third floor 1|200 b a
  • 23.
    b a sience sience pc lab pc lab c c third floor 1|200 b a
  • 24.
    A D AYAT SCHOOL +
  • 31.
    FA S AD E
  • 32.
    flexibel fasade south side north side n ht su lig open open turn n h t su l ig closed closed
  • 33.
    M O DE L
  • 35.
    S E EY O U AT T H E B E A C H . . .