PORTFOLIO




     engineer   Ahmad Mian
I am high-energy, enthusiastic and innovative engineer with a proven track
record of having 10+ years of professional experience in the planning,
design and construction of diverse project (Residential / Educational /
Commercial / LEED ).

Specialties:

An ability to plan projects in order to accomplish its goals within constraints
such as time, cost and agreed quality standards, Schedule tasks, deadlines
and milestones for all stake holders and resources.
· Thoroughly familiar with good engineering practices, economic
practices, calculation methods, design details, critical thinking, standards
and specifications.
· Have strong written presentational and verbal communication skills; well
developed work ethics and practical approach.
· Documentation skills to document project schedules, familiar with book
keeping software and basic Accounting.
· Ability to work effectively under minimal supervision, Multi tasking, able
to handle more than one project at a time.
· A quick learner who enjoys keeping current with new developments.

Expert: in a variety of software such as AutoCAD, Sketch up, Adobe
Photoshop, and MS Office.



                                                                                  ahmad.mian230976@gmail.com
                                                                                  Cell: +1 647-786-6064
Responsibilities:
 •Reported directly to Project Manager, responsible for coordination
 with electrical, plumbing, landscape engineers and with the client for
 Preparing designs, drawings, plans and specifications for projects.
 •Prepare and maintain a directory of suppliers and trade
 subcontractors.
 •Evaluate and recommend appropriate building and construction
 materials.
 •Prepare contract documents and review and evaluate tenders for
 construction projects
 •Supervise technicians, technologists and other engineers and review     In 1992, Dada received
                                                                          the President's Pride of
 and approve designs, calculations and cost estimates.
                                                                          Performance award for
 •Present work to the Project Manager, client (as applicable) at          his services
 milestones throughout the production                                     to architecture and
 •Provided support to Engineering and on-site clients.                    conservation, he also
                                                                          received the Aga Khan
 •Managed successful relationships with sub-contractors and associate
                                                                          Award for
 contractors.                                                             Architecture, in 1998
 •Participate directly in the design, development and inspection.         for Al-Hamra Arts
                                                                          Complex.




Company: Nayyar Ali Dada & Associates ( NADA )
Duration: 2003 – 2007
Designation: Architect
NADA
Experience
Certificate




Recommendation
letter by Nayyar
Ali Dada
Description:

                                                                                 Head office for
                                                                                 PNRA. Radial plan
                                                                                 used to reduce the
                                                                                 circulation, and
                                                                                 keep maximum
                                                                                 check on circulation
                                                                                 for most possible
                                                                                 security. The
                                                                                 building form
                                                                                 symbolically
                                                                                 represents both the
                                                                                 purpose and the
                                                                                 function. Restricted
                                                                                 circulation for
                                                                                 various functions
                                                                                 catered innovatively
                                                                                 through
                                                                                 architectural design.




Project: Office Building for Pakistan Nuclear Regulatory Authority (Islamabad)
Project Designation: Project Architect
Covered area: 54,250 sft.
Description:
                                                    Concept closely
                                                    follows the
                                                    philosophy of a
                                                    modern, dynamic &
                                                    futuristic university.
                                                    Conceived as a
                                                    pedestrian campus.
                                                    An environmental
                                                    friendly campus
                                                    surrounded by
The form of the building takes its shape            foliage and green
from the orientation towards sun and                landscaped areas.
semi surrounded multileveled intimate
open spaces. The building forms are
robust and drive their language from the
séance of dynamics and movement in the
plan.



Project: Beaconhouse National University (Lahore)
Project Designation: Project Architect
Covered area: 263,846 sft.
Working with both
                                                    conservative and
                                                    dynamic
                                                    forms, robust with
                                                    light, traditional
                                                    with
                                                    futuristic, strike the
                                                    delicate balance
                                                    required for
                                                    appropriate
                                                    architecture. The
                                                    attempt was to
                                                    capture
                                                    architectural
                                                    sensitivity to our
                                                    economy, climate, c
                                                    ulture, materials
                                                    and location.

Project: Beaconhouse National University (Lahore)
Project Designation: Project Architect
Covered area: 263,846 sft.
Project:
Riffa Views
(Bahrain)
Project
Designation:
Coordinating
Architect
Description:
Middle-income
housing project
based in Bahrain.
Perform conceptual
architectural layout
for Four-unit type,
clubhouse and a
mosque. The site is
along the golf
course with each
unit type facing the
golf course.
Responsibilities:
                                                                  AMSA Project
•Schedule and monitor program activity to achieve an “on-time”
result including follow-up with external suppliers to ensure
                                                                  A Residential
timely response to action items.
                                                                  Project of app
•Inspected work performed by subcontractors to ensure quality
                                                                  1,300,000 sq ft to
and conformity with plans and specifications
                                                                  accommodate
•Coordinated multi-site work flow processes through
                                                                  4500 staff of the
procurement, shipping and receiving, staging, and installation.
                                                                  Atalantis the Palm
•Ensured construction plans met guidelines and specifications
                                                                  Hotel (Dubai).
of building codes and other regulations.
                                                                  The project
•Conducted field inspection mock-up approval.
                                                                  compromise of 4
•Issued work permits, and change orders.
                                                                  buildings (B+G+10-
•Proactively established key relationships and liaised with
                                                                  16 Floors)
management, clients, contractors, subcontractors and vendors;
                                                                  Total project cost is
tracked and reviewed project documents; contracts, and project
                                                                  $ 230 M
specification.
•Maintained and documented reports on a daily basis regarding
the projects assigned to various departments.
•Performed other assigned duties as deemed necessary by
project manager/ Resident Engineer.

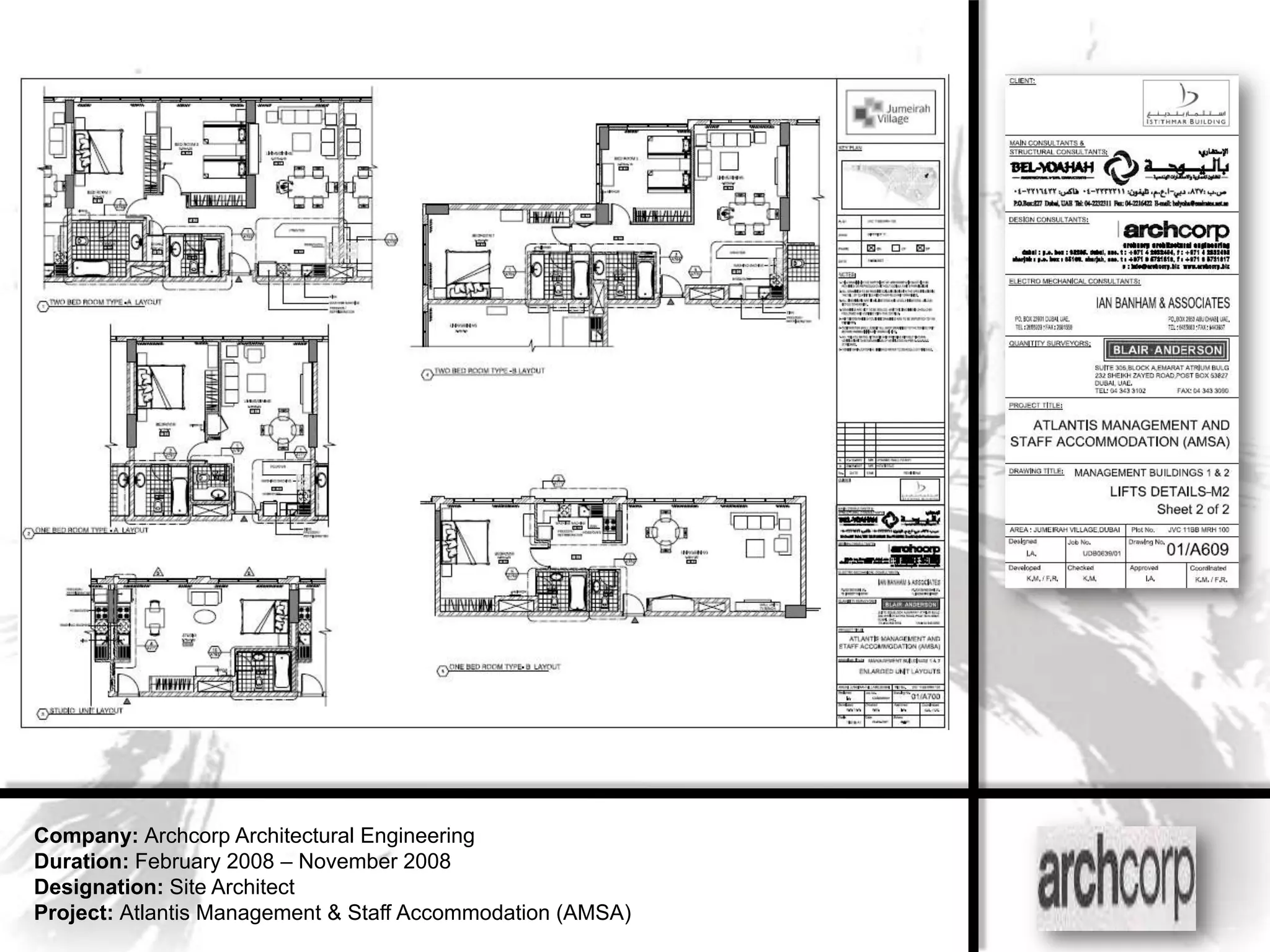
Company: Archcorp Architectural Engineering
Duration: February 2008 – November 2008
Designation: Site Architect
Project: Atlantis Management & Staff Accommodation (AMSA)
AMSA Project
                                                            Experience
                                                            Certificate




Company: Archcorp Architectural Engineering
Duration: February 2008 – November 2008
Designation: Site Architect
Project: Atlantis Management & Staff Accommodation (AMSA)
AMSA Project

                                        Master plan:
                                        •MB-1,2
                                        •S- 1,2,3
                                        •S- 4
                                        •S- 5




Management           (MB-1,2) Level 2
Building (MB- 1,2)   Playing area and
2B+G+10,16 story     swimming pool
Company: Archcorp Architectural Engineering
Duration: February 2008 – November 2008
Designation: Site Architect
Project: Atlantis Management & Staff Accommodation (AMSA)
Staff Building
                                            S-4 (2B+G+10)
                                            Story




Staff Building          S-1,2,3
S-1,2,3 (2B+G+ 10,16)   Commercial center
Story
Staff Building
                                              S-4 (2B+G+10)
                                              Story




                                              Staff Building
                                              S-5 (2B+G+10)
                                              Story




Staff Building          Management Building
S-1,2,3 (2B+G+ 10,16)   MB-1&2 (2B+G+10,16)
Story                   Story
Responsibilities:

•Worked closely with project managers and project engineer to support the
successful development and implementation of project schedules.                             KAUST:
•Direct and supervises other engineering activities, train or arrange for
training of workers,                                                                        KAUST’s new campus
•Supervise technical/progress meeting, survey or field engineering teams.                   is Saudi Arabia’s first
                                                                                            LEED-certified
•Responsible for control of work-in-progress, ensures
                                                                                            project, earning LEED
accurate client billings, monitors outstanding accounts receivable and                      Platinum. In
collection efforts on related projects.                                                     addition, it is the
•Resolve work problems and recommend measures to improve                                    largest certified
productivity.                                                                               project of its kind in
•Provided quality control for client deliverable to ensure project documents                the world to date, as a
were complete and current.                                                                  496 000 square metre
•Coordinated and supported the transfer of all equipment and installations                  project,.
to the end user client.
•Worked with the project team members, clients and vendors to coordinate
activities like supply, installation, commissioning and testing, monitored
work permits, and change orders.
•Created project presentation, reports, minutes of meeting and various site
documentations.

Company: ARAMCO (Ranhill Bersekutu Saudi Ltd)
Duration: 2009 – 2011
Designation: Project Engineer
Project: King Abdullah University of Science & Technology (KAUST) (platinum Lead Project)
KAUST Project
                                                                                            Experience
                                                                                            Certificate




                                                                                            Recommendation
                                                                                            letter by Senior
                                                                                            Project Engineer


Company: ARAMCO (Ranhill Bersekutu Saudi Ltd)
Duration: 2009 – 2011
Designation: Project Engineer
Project: King Abdullah University of Science & Technology (KAUST) (platinum Lead Project)
LEED
                                                                                            Registered
                                                                                            Project
                                                                                            Experience
                                                                                            Confirmation
                                                                                            Letter




Company: ARAMCO (Ranhill Bersekutu Saudi Ltd)
Duration: 2009 – 2011
Designation: Project Engineer
Project: King Abdullah University of Science & Technology (KAUST) (platinum Lead Project)
Bridge between
                             Administration
                             building and
                             the Auditorium




                             Library and Lab.
                             Buildings facing
                             the Red Sea
                             view




KAUST:       Lab. Building
Breakwater   corridor
Beacon
Responsibilities:
•Coordinated with project managers to design construction                     The USAID Power
drawings, established project standards for each project, scope of work and   Distribution Program is
site inspection.                                                              a $170 million, three-
•Planed and prepared construction schedules and milestones and monitor        year, USAID (IRG)-
progress against established schedules.                                       financed project
•Developed and implement quality control programs.                            designed to facilitate
                                                                              improvements in
•Developed construction specifications and procedures.
                                                                              electric power
•Establish and monitor construction work schedules.                           distribution utilities
•Acted as project / site supervisor for construction work.                    across nation to
•Coordinated with the technical team leader in additional assignments and     improve their
small projects.                                                               performance and
                                                                              provide better service
                                                                              to their 120 million
                                                                              customers. The
                                                                              project began in
                                                                              September, 2010




Company: USAID (IRG)
Duration: 2011 – July 2012
Designation: Computer Design Specialist
Project: Power Distribution Program
Myk Manon
                                                                                                                  Mr. Manon is NRECA
                                                                                                                  International’s Engineer and
                                                                                                                  Operation Manager for Nigeria
                                                                                                                  project. Mr. Manon has over 35
                                                                                                                  years of experience in
                                                                                                                  supervising and managing rural
                                                                                                                  electrification assignments for
                                                                                                                  government and private clients.
                                                                                                                  Mr. Manon has managed USAID-
                                                                                                                  funded programs in Southern
                                                                                                                  Sudan, El Salvador, Dominican
                                                                                                                  Republic, Bolivia, and Nicaragua
                                                                                                                  that encompass rural line
                                                                                                                  design, construction and
                                                                                                                  supervision; utility
                                                                                                                  organizational
                                                                                                                  development, privatization
                                                                                                                  analysis, and training support.




Mr. Manon has developed work plans, coordinated task assignments with multiple subcontractors, provided overall
substantive administrative and logistical support to short term and long term teams in developing countries
focusing on donor agencies’ strategic objectives and targets and indicators. Mr. Manon has a strong cooperative
sector background in promoting rural electrification projects utilizing innovative technology in developing
countries.
Mr. Manon received his M.S. and B.S. University of California, Davis.
Arrangement drawing for
                                         the installation of four
                                         ,single phase meter on a
                                         pole, using customized
                                         steel strips.




                                                                     Illustration of
                                                                     low Voltage
                                                                     drops and meter
                                                                     installation




Manufacturing Drawings developed for one of the projects for the
installation methodology of single phase and three phase meters on
H-Type poles, using U-Clamp
•Enrolled in in-house Management Certificate Program(L-3), IRG
       Completed “FCPA: PART-1”,
     April 2012
       Completed “FCPA: PART-2”,
     April 2012
       Completed “EXPORT CONTROL” ,
     MARCH 2012
       Completed “ LABOR CHARGING”,
     MARCH 2012
       Completed “DRUG FREE WORK PLACE”,
     MARCH 2012
       Completed “INFORMATION SECURITY”,
     FEB. 2012
       Completed “CODE OF ETHICS AND BUSINESS CONDUCT”,
     MAY 2012
•Certificate “What Leaders Do” , BBC,
June 2008
•Bachelors of Architectural Design, National College of Arts,
2003.
•Bachelors of Commerce, Punjab College of Commerce,
1998.




   Education & Professional Development                          ahmad.mian230976@gmail.com
                                                                 Cell: +1 647-786-6064
Ahmad Mian
   Cell: (+1) 647-786-6064



ahmad.mian230976@gmail.com




                             Thank you

Portfolio Pc

  • 1.
    PORTFOLIO engineer Ahmad Mian
  • 2.
    I am high-energy,enthusiastic and innovative engineer with a proven track record of having 10+ years of professional experience in the planning, design and construction of diverse project (Residential / Educational / Commercial / LEED ). Specialties: An ability to plan projects in order to accomplish its goals within constraints such as time, cost and agreed quality standards, Schedule tasks, deadlines and milestones for all stake holders and resources. · Thoroughly familiar with good engineering practices, economic practices, calculation methods, design details, critical thinking, standards and specifications. · Have strong written presentational and verbal communication skills; well developed work ethics and practical approach. · Documentation skills to document project schedules, familiar with book keeping software and basic Accounting. · Ability to work effectively under minimal supervision, Multi tasking, able to handle more than one project at a time. · A quick learner who enjoys keeping current with new developments. Expert: in a variety of software such as AutoCAD, Sketch up, Adobe Photoshop, and MS Office. ahmad.mian230976@gmail.com Cell: +1 647-786-6064
  • 3.
    Responsibilities: •Reported directlyto Project Manager, responsible for coordination with electrical, plumbing, landscape engineers and with the client for Preparing designs, drawings, plans and specifications for projects. •Prepare and maintain a directory of suppliers and trade subcontractors. •Evaluate and recommend appropriate building and construction materials. •Prepare contract documents and review and evaluate tenders for construction projects •Supervise technicians, technologists and other engineers and review In 1992, Dada received the President's Pride of and approve designs, calculations and cost estimates. Performance award for •Present work to the Project Manager, client (as applicable) at his services milestones throughout the production to architecture and •Provided support to Engineering and on-site clients. conservation, he also received the Aga Khan •Managed successful relationships with sub-contractors and associate Award for contractors. Architecture, in 1998 •Participate directly in the design, development and inspection. for Al-Hamra Arts Complex. Company: Nayyar Ali Dada & Associates ( NADA ) Duration: 2003 – 2007 Designation: Architect
  • 4.
  • 5.
    Description: Head office for PNRA. Radial plan used to reduce the circulation, and keep maximum check on circulation for most possible security. The building form symbolically represents both the purpose and the function. Restricted circulation for various functions catered innovatively through architectural design. Project: Office Building for Pakistan Nuclear Regulatory Authority (Islamabad) Project Designation: Project Architect Covered area: 54,250 sft.
  • 6.
    Description: Concept closely follows the philosophy of a modern, dynamic & futuristic university. Conceived as a pedestrian campus. An environmental friendly campus surrounded by The form of the building takes its shape foliage and green from the orientation towards sun and landscaped areas. semi surrounded multileveled intimate open spaces. The building forms are robust and drive their language from the séance of dynamics and movement in the plan. Project: Beaconhouse National University (Lahore) Project Designation: Project Architect Covered area: 263,846 sft.
  • 7.
    Working with both conservative and dynamic forms, robust with light, traditional with futuristic, strike the delicate balance required for appropriate architecture. The attempt was to capture architectural sensitivity to our economy, climate, c ulture, materials and location. Project: Beaconhouse National University (Lahore) Project Designation: Project Architect Covered area: 263,846 sft.
  • 8.
    Project: Riffa Views (Bahrain) Project Designation: Coordinating Architect Description: Middle-income housing project basedin Bahrain. Perform conceptual architectural layout for Four-unit type, clubhouse and a mosque. The site is along the golf course with each unit type facing the golf course.
  • 9.
    Responsibilities: AMSA Project •Schedule and monitor program activity to achieve an “on-time” result including follow-up with external suppliers to ensure A Residential timely response to action items. Project of app •Inspected work performed by subcontractors to ensure quality 1,300,000 sq ft to and conformity with plans and specifications accommodate •Coordinated multi-site work flow processes through 4500 staff of the procurement, shipping and receiving, staging, and installation. Atalantis the Palm •Ensured construction plans met guidelines and specifications Hotel (Dubai). of building codes and other regulations. The project •Conducted field inspection mock-up approval. compromise of 4 •Issued work permits, and change orders. buildings (B+G+10- •Proactively established key relationships and liaised with 16 Floors) management, clients, contractors, subcontractors and vendors; Total project cost is tracked and reviewed project documents; contracts, and project $ 230 M specification. •Maintained and documented reports on a daily basis regarding the projects assigned to various departments. •Performed other assigned duties as deemed necessary by project manager/ Resident Engineer. Company: Archcorp Architectural Engineering Duration: February 2008 – November 2008 Designation: Site Architect Project: Atlantis Management & Staff Accommodation (AMSA)
  • 10.
    AMSA Project Experience Certificate Company: Archcorp Architectural Engineering Duration: February 2008 – November 2008 Designation: Site Architect Project: Atlantis Management & Staff Accommodation (AMSA)
  • 11.
    AMSA Project Master plan: •MB-1,2 •S- 1,2,3 •S- 4 •S- 5 Management (MB-1,2) Level 2 Building (MB- 1,2) Playing area and 2B+G+10,16 story swimming pool
  • 12.
    Company: Archcorp ArchitecturalEngineering Duration: February 2008 – November 2008 Designation: Site Architect Project: Atlantis Management & Staff Accommodation (AMSA)
  • 13.
    Staff Building S-4 (2B+G+10) Story Staff Building S-1,2,3 S-1,2,3 (2B+G+ 10,16) Commercial center Story
  • 14.
    Staff Building S-4 (2B+G+10) Story Staff Building S-5 (2B+G+10) Story Staff Building Management Building S-1,2,3 (2B+G+ 10,16) MB-1&2 (2B+G+10,16) Story Story
  • 15.
    Responsibilities: •Worked closely withproject managers and project engineer to support the successful development and implementation of project schedules. KAUST: •Direct and supervises other engineering activities, train or arrange for training of workers, KAUST’s new campus •Supervise technical/progress meeting, survey or field engineering teams. is Saudi Arabia’s first LEED-certified •Responsible for control of work-in-progress, ensures project, earning LEED accurate client billings, monitors outstanding accounts receivable and Platinum. In collection efforts on related projects. addition, it is the •Resolve work problems and recommend measures to improve largest certified productivity. project of its kind in •Provided quality control for client deliverable to ensure project documents the world to date, as a were complete and current. 496 000 square metre •Coordinated and supported the transfer of all equipment and installations project,. to the end user client. •Worked with the project team members, clients and vendors to coordinate activities like supply, installation, commissioning and testing, monitored work permits, and change orders. •Created project presentation, reports, minutes of meeting and various site documentations. Company: ARAMCO (Ranhill Bersekutu Saudi Ltd) Duration: 2009 – 2011 Designation: Project Engineer Project: King Abdullah University of Science & Technology (KAUST) (platinum Lead Project)
  • 16.
    KAUST Project Experience Certificate Recommendation letter by Senior Project Engineer Company: ARAMCO (Ranhill Bersekutu Saudi Ltd) Duration: 2009 – 2011 Designation: Project Engineer Project: King Abdullah University of Science & Technology (KAUST) (platinum Lead Project)
  • 17.
    LEED Registered Project Experience Confirmation Letter Company: ARAMCO (Ranhill Bersekutu Saudi Ltd) Duration: 2009 – 2011 Designation: Project Engineer Project: King Abdullah University of Science & Technology (KAUST) (platinum Lead Project)
  • 19.
    Bridge between Administration building and the Auditorium Library and Lab. Buildings facing the Red Sea view KAUST: Lab. Building Breakwater corridor Beacon
  • 20.
    Responsibilities: •Coordinated with projectmanagers to design construction The USAID Power drawings, established project standards for each project, scope of work and Distribution Program is site inspection. a $170 million, three- •Planed and prepared construction schedules and milestones and monitor year, USAID (IRG)- progress against established schedules. financed project •Developed and implement quality control programs. designed to facilitate improvements in •Developed construction specifications and procedures. electric power •Establish and monitor construction work schedules. distribution utilities •Acted as project / site supervisor for construction work. across nation to •Coordinated with the technical team leader in additional assignments and improve their small projects. performance and provide better service to their 120 million customers. The project began in September, 2010 Company: USAID (IRG) Duration: 2011 – July 2012 Designation: Computer Design Specialist Project: Power Distribution Program
  • 21.
    Myk Manon Mr. Manon is NRECA International’s Engineer and Operation Manager for Nigeria project. Mr. Manon has over 35 years of experience in supervising and managing rural electrification assignments for government and private clients. Mr. Manon has managed USAID- funded programs in Southern Sudan, El Salvador, Dominican Republic, Bolivia, and Nicaragua that encompass rural line design, construction and supervision; utility organizational development, privatization analysis, and training support. Mr. Manon has developed work plans, coordinated task assignments with multiple subcontractors, provided overall substantive administrative and logistical support to short term and long term teams in developing countries focusing on donor agencies’ strategic objectives and targets and indicators. Mr. Manon has a strong cooperative sector background in promoting rural electrification projects utilizing innovative technology in developing countries. Mr. Manon received his M.S. and B.S. University of California, Davis.
  • 22.
    Arrangement drawing for the installation of four ,single phase meter on a pole, using customized steel strips. Illustration of low Voltage drops and meter installation Manufacturing Drawings developed for one of the projects for the installation methodology of single phase and three phase meters on H-Type poles, using U-Clamp
  • 23.
    •Enrolled in in-houseManagement Certificate Program(L-3), IRG Completed “FCPA: PART-1”, April 2012 Completed “FCPA: PART-2”, April 2012 Completed “EXPORT CONTROL” , MARCH 2012 Completed “ LABOR CHARGING”, MARCH 2012 Completed “DRUG FREE WORK PLACE”, MARCH 2012 Completed “INFORMATION SECURITY”, FEB. 2012 Completed “CODE OF ETHICS AND BUSINESS CONDUCT”, MAY 2012 •Certificate “What Leaders Do” , BBC, June 2008 •Bachelors of Architectural Design, National College of Arts, 2003. •Bachelors of Commerce, Punjab College of Commerce, 1998. Education & Professional Development ahmad.mian230976@gmail.com Cell: +1 647-786-6064
  • 24.
    Ahmad Mian Cell: (+1) 647-786-6064 ahmad.mian230976@gmail.com Thank you