Embed presentation
Download to read offline






























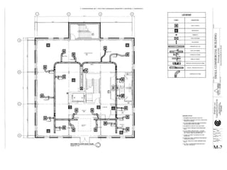
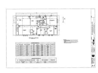
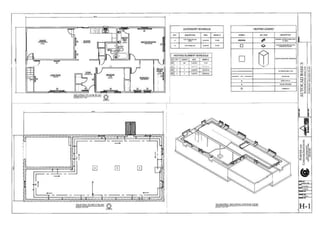
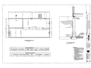
Porter & Chester provide AutoCAD and Revit services. Their portfolio from 2011 showcases work done in AutoCAD and Revit. The document appears to be an advertisement or listing of services from Porter & Chester related to AutoCAD and Revit work from 2011.




























