‫ادارى‬ ‫تجارى‬ ‫سكنى‬ ‫مبنى‬ ‫مشروع‬
‫الى‬ ‫مقدم‬
:
-
‫د‬
/
‫حسن‬ ‫حسين‬
‫م‬
.
‫م‬
/
‫حسين‬ ‫سالى‬
‫م‬
/
‫احمد‬ ‫سلمى‬
‫الطالب‬ ‫من‬ ‫مقدم‬
/
‫علي‬ ‫مصطفي‬ ‫علي‬
ID/19204114
‫الفهرس‬
*
‫التصميميه‬ ‫اﻻسس‬
1
-
‫للسكنى‬ ‫التصميميه‬ ‫اﻻسس‬
2
-
‫للتجارى‬ ‫التصميميه‬ ‫اﻻسس‬
3
-
‫لﻼدارى‬ ‫التصميميه‬ ‫اﻻسس‬
4
-
‫للكراجات‬ ‫التصميمه‬ ‫اﻻسس‬
*
‫المشابه‬ ‫اﻻمثله‬
*
‫للسكنى‬ ‫التصميميه‬ ‫اﻻسس‬
‫السكنيه‬ ‫الوحده‬ ‫عناصر‬
:
1
-
‫المدخل‬
2
-
‫المعيشه‬ ‫صالة‬
3
-
‫الصالون‬
4
-
‫الطعام‬ ‫غرفة‬
5
-
‫النوم‬ ‫غرفة‬
6
-
‫المطبخ‬
7
-
‫الحمام‬
‫المدخل‬ ‫صالة‬
-
‫ان‬ ‫يجب‬ ‫المدخل‬ ‫صالة‬
‫كاف‬ ‫بشكل‬ ‫واسعة‬ ‫تكون‬
‫االستقبال‬ ‫إلمكانية‬
‫مريح‬ ‫بشكل‬
.
-
‫اهمية‬ ‫االكثر‬ ‫االماكن‬
‫نمر‬ ‫التى‬ ‫خاص‬ ‫وبشكل‬
‫الدرج‬ ‫وكمثال‬ ‫كثيرا‬ ‫بها‬
‫الطوابق‬ ‫الى‬ ‫يقود‬ ‫الذى‬
‫مرتبطة‬ ‫تكون‬ ‫ان‬ ‫يجب‬
‫بصالة‬ ‫مباشر‬ ‫بشكل‬
‫ذلك‬ ‫مع‬ ‫ويفضل‬ ‫المدخل‬
‫مفصوال‬ ‫المطبخ‬ ‫يكون‬ ‫ان‬
‫بصالة‬ ‫او‬ ‫الخدمة‬ ‫بغرفة‬ ‫اما‬
‫البيت‬ ‫عن‬ ‫الروائح‬ ‫لمنع‬
.
‫النوم‬ ‫غرف‬
•
‫عن‬ ‫تقل‬ ‫ال‬ ‫ان‬ ‫يجب‬ ‫النوم‬ ‫غرفة‬ ‫مساحة‬
2
‫متر‬
20
•
‫التهوية‬ ‫لضمان‬ ‫بالغرفة‬ ‫فتحات‬ ‫عمل‬ ‫يجب‬
‫ودخول‬
‫الهواء‬ ‫وتجدد‬ ‫الشمس‬
.
•
‫والشرق‬ ‫للشمال‬ ‫التوجيه‬ ‫يفضل‬
.
•
‫المطل‬ ‫على‬ ‫التوجيه‬ ‫يفضل‬
•
‫اال‬ ‫يجب‬ ‫الحائطية‬ ‫الخزائن‬ ‫باستثناء‬
‫العين‬ ‫ارتفاع‬ ‫الخزانة‬ ‫ارتفاع‬ ‫يتجاوز‬
‫من‬ ‫هو‬ ‫المالئم‬ ‫واالرتفاع‬
4.1
-
5.1
‫م‬
‫النوم‬ ‫غرف‬ ‫لخزائن‬ ‫بالنسبة‬ ‫خصوصا‬
‫االرتفاع‬ ‫ذات‬ ‫الخزائن‬ ‫تجنب‬ ‫ويجب‬
8.1
.
•
‫غرف‬ ‫اكبر‬ ‫الرئيسية‬ ‫النوم‬ ‫غرفة‬ ‫تكون‬
‫حمام‬ ‫و‬ ‫اثاث‬ ‫من‬ ‫ملحقاتها‬ ‫تتعدد‬ ‫و‬ ‫النوم‬
‫مالبس‬ ‫غرفة‬ ‫و‬ ‫مستقل‬
.
‫المعيشه‬ ‫غرف‬
-
‫الضيوف‬ ‫الستقبال‬ ‫المعيشة‬ ‫صالة‬ ‫تستخدم‬
‫الصغيرة‬ ‫السكنية‬ ‫الوحدات‬ ‫فى‬ ‫خاصة‬
.
-
‫بين‬ ‫تتراوح‬ ‫ما‬ ‫غالبا‬ ‫المعيشة‬ ‫صالة‬ ‫مساحة‬
25
-
30
‫مربع‬ ‫متر‬
.
-
‫المكتبة‬
:
‫الشمال‬ ‫اتجاه‬ ‫يأخذ‬ ‫عادة‬ ‫الركن‬ ‫هذا‬
‫بطول‬ ‫للكتب‬ ‫رف‬ ‫على‬ ‫ويحتوى‬
1
‫ان‬ ‫ويمكن‬ ‫م‬
‫من‬ ‫يحوى‬
30
-
40
‫مجلدا‬
.
-
‫االضاءة‬
:
‫لتوحي‬ ‫وكافية‬ ‫مناسبة‬ ‫تكون‬ ‫أن‬ ‫يجب‬
‫بالراحة‬
.
-
‫التهوية‬
:
‫حركة‬ ‫لضمان‬ ‫للتهوية‬ ‫فتحات‬ ‫عمل‬
‫بالغرفة‬ ‫باستمرار‬ ‫الهواء‬ ‫وتجدد‬
.
‫الطعام‬ ‫غرف‬
•
‫على‬ ‫الطعام‬ ‫غرف‬ ‫تكون‬ ‫ان‬ ‫الضرورى‬ ‫من‬
‫األوفيس‬ ‫أو‬ ‫بالمطبخ‬ ‫مباشر‬ ‫اتصال‬
.
•
‫عالقة‬ ‫هناك‬ ‫تكون‬ ‫ان‬ ‫الضرورى‬ ‫من‬ ‫وليس‬
‫المسكن‬ ‫اجزاء‬ ‫باقى‬ ‫وبين‬ ‫بينها‬ ‫مباشرة‬
.
•
‫نفسه‬ ‫المطبخ‬ ‫فى‬ ‫تكون‬ ‫وقد‬
.
•
‫جزءا‬ ‫تصبح‬ ‫ان‬ ‫يمكن‬ ‫الواسعة‬ ‫االبواب‬ ‫بفضل‬
‫المعيشة‬ ‫غرفة‬ ‫من‬
.
•
‫االبواب‬ ‫وضع‬ ‫الحالة‬ ‫هذه‬ ‫فى‬ ‫ويفضل‬
‫الزوايا‬ ‫من‬ ‫بالقرب‬
.
•
‫بين‬ ‫ما‬ ‫تقريبا‬ ‫تتراوح‬ ‫مساحتها‬
20
–
25
‫متر‬
‫مربع‬
.
‫المطابخ‬
-
‫بغرفة‬ ‫جيد‬ ‫اتصال‬ ‫على‬ ‫تكون‬ ‫ان‬ ‫يجب‬
‫والحمام‬ ‫الخدمة‬ ‫اماكن‬ ‫وكافة‬ ‫الطعام‬
.
-
‫وللحركة‬ ‫للمرور‬ ‫المناسبة‬ ‫الفراغات‬ ‫وجود‬
.
-
‫الجنوب‬ ‫او‬ ‫الجنوب‬ ‫ناحية‬ ‫المطابخ‬ ‫توجه‬
‫الشرقى‬
.
-
‫ب‬ ‫للمطبخ‬ ‫بعد‬ ‫أقل‬
30.2
‫م‬
.
-
‫الموقد‬ ‫عن‬ ‫بعيدا‬ ‫الثالجة‬ ‫توضع‬ ‫ان‬ ‫يراعي‬
‫الجلي‬ ‫حوض‬ ‫و‬
.
-
‫االمكان‬ ‫قدر‬ ‫طبيعية‬ ‫االضاءة‬ ‫تكون‬ ‫أن‬ ‫يجب‬
.
-
‫الناتجة‬ ‫الروائح‬ ‫من‬ ‫للتخلص‬ ‫شفاط‬ ‫وضع‬
‫المطبخ‬ ‫من‬
.
‫خدمات‬
-
‫ودواليب‬ ‫ألدراج‬ ‫كافية‬ ‫مساحات‬ ‫وجود‬
‫التخزين‬
.
‫الحمامات‬
‫اكثر‬ ‫او‬ ‫نافذة‬ ‫طريق‬ ‫عن‬ ‫طبيعيا‬ ‫مضاءة‬ ‫تكون‬ ‫ان‬ ‫يجب‬
‫متر‬ ‫نصف‬ ‫من‬ ‫اقل‬ ‫النوافذ‬ ‫هذه‬ ‫مساحة‬ ‫تكون‬ ‫وان‬
‫مربع‬
.
-
‫بل‬ ‫وحدها‬ ‫االبواب‬ ‫او‬ ‫النوافذ‬ ‫على‬ ‫االعتماد‬ ‫يجوز‬ ‫ال‬
‫للتهوية‬ ‫ماسورة‬ ‫مياه‬ ‫دورة‬ ‫كل‬ ‫فى‬ ‫يكون‬ ‫ان‬ ‫يجب‬
‫ﻻلحتراق‬ ‫قابلة‬ ‫غير‬ ‫مادة‬ ‫من‬
.
-
‫حوائطها‬ ‫تكسى‬ ‫كما‬ ‫المياه‬ ‫دورات‬ ‫ارضيات‬ ‫تصنع‬
‫عن‬ ‫يقل‬ ‫ال‬ ‫بارتفاع‬
50.1
‫الرطوبة‬ ‫تمتص‬ ‫ال‬ ‫عادة‬ ‫م‬
‫وتعتبر‬ ‫اتالفها‬ ‫دون‬ ‫تنظيفها‬ ‫او‬ ‫غسيلها‬ ‫ويسهل‬
‫لعمل‬ ‫الجيدة‬ ‫المود‬ ‫من‬ ‫والرخام‬ ‫السيراميك‬
‫األرضيات‬
.
-
‫الشرقى‬ ‫الجنوبى‬ ‫هو‬ ‫للحمامات‬ ‫المالئم‬ ‫الوضع‬ ‫ان‬
.
-
‫لسهولة‬ ‫وذلك‬ ‫المطابخ‬ ‫من‬ ‫قريبا‬ ‫يكون‬ ‫ان‬ ‫يجب‬
‫الصرف‬ ‫مواسير‬ ‫تجميع‬
.
-
‫النوم‬ ‫غرف‬ ‫من‬ ‫بالقرب‬ ‫الحمام‬ ‫مكان‬ ‫اختيار‬ ‫يكون‬
‫االستخدام‬ ‫لسهولة‬
.
-
‫عن‬ ‫تقل‬ ‫ال‬ ‫ان‬ ‫يجب‬ ‫الحمام‬ ‫مساحة‬
5.1
‫متر‬
*
1
‫متر‬
.
‫ثانيا‬
:
‫األبراج‬ ‫و‬ ‫العمارات‬
‫السكنية‬
‫الطابق‬ ‫في‬ ‫السكنية‬ ‫الوحدات‬ ‫عدد‬
Duplex villa ‫نظام‬
‫الساللم‬
:
1
-
‫عن‬ ‫الصافى‬ ‫الدرج‬ ‫عرض‬ ‫اليقل‬ ‫السكنية‬ ‫للفيالت‬
2.1
‫عرض‬ ‫يقل‬ ‫وال‬ ‫الواحد‬ ‫االتجاه‬ ‫فى‬ ‫م‬
‫عن‬ ‫الصدفة‬ ‫او‬ ‫البسطة‬
20.1
‫عن‬ ‫القائمة‬ ‫ارتفاع‬ ‫يزيد‬ ‫وال‬ ‫م‬
17
‫عن‬ ‫النايمة‬ ‫عرض‬ ‫يقل‬ ‫وال‬ ‫سم‬
28
‫سم‬
2
-
‫عن‬ ‫الداخلى‬ ‫الدرج‬ ‫عرض‬ ‫اليقل‬ ‫ان‬ ‫يجب‬ ‫السكنية‬ ‫العمارات‬ ‫فى‬
5.1
‫الواحد‬ ‫االتجاه‬ ‫فى‬ ‫م‬
‫عن‬ ‫والصدفة‬ ‫البسطة‬ ‫وعرض‬
50.1
‫عن‬ ‫القائمة‬ ‫ارتفاع‬ ‫واليزيد‬ ‫م‬
16
‫ثوفير‬ ‫يتم‬ ‫ان‬ ‫على‬ ‫سم‬
‫المباشرة‬ ‫واالضاءة‬ ‫التهوية‬
3
-
‫التالية‬ ‫للمعادلة‬ ‫طبقا‬ ‫السلم‬ ‫لدرجة‬ ‫والنائمة‬ ‫القايمة‬ ‫ابعاد‬ ‫تحديد‬ ‫يتم‬
:
‫النائمة‬ ‫ارتفاع‬ ‫ضعف‬
+
‫النائمة‬ ‫عرض‬
=
60
-
65
‫سم‬
4
-
‫لنهايته‬ ‫السلم‬ ‫بداية‬ ‫من‬ ‫الدرجات‬ ‫وابعاد‬ ‫قياسات‬ ‫تتماثل‬ ‫ان‬ ‫يجب‬
5
-
‫عن‬ ‫المبنى‬ ‫ارتفاع‬ ‫زاد‬ ‫اذا‬
4
‫للشروط‬ ‫مطابقا‬ ‫هروب‬ ‫بسلم‬ ‫يزود‬ ‫ان‬ ‫فيجب‬ ‫ادوار‬
‫القياسية‬
6
-
‫عن‬ ‫الواحدة‬ ‫القلبة‬ ‫فى‬ ‫الدرجات‬ ‫عدد‬ ‫يتجاوز‬ ‫ال‬ ‫ان‬ ‫يجب‬
14
‫درجة‬
7
-
‫هو‬ ‫الدرج‬ ‫فوق‬ ‫ﻻلرتفاع‬ ‫االدنى‬ ‫الحد‬ ‫يكون‬ ‫ان‬ ‫يجب‬
220
‫سم‬
8
-
‫الداخلية‬ ‫الساللم‬ ‫عدا‬ ‫فيما‬ ‫للحريق‬ ‫مقاومة‬ ‫مواد‬ ‫من‬ ‫الساللم‬ ‫بناء‬ ‫يتم‬ ‫ان‬ ‫يجب‬
9
-
‫صناعية‬ ‫وتهوية‬ ‫باضاءة‬ ‫الطبيعية‬ ‫واالضاءة‬ ‫التهوية‬ ‫عن‬ ‫االستعاضة‬ ‫يمكن‬
10
-
‫عن‬ ‫الدرج‬ ‫درابزين‬ ‫ارتفاع‬ ‫يقل‬ ‫اال‬ ‫يجب‬
100
‫سم‬
11
-
‫اليها‬ ‫الوصول‬ ‫يسهل‬ ‫واضحة‬ ‫اماكن‬ ‫فى‬ ‫الساللم‬ ‫تكون‬ ‫ان‬ ‫يجب‬
12
-
‫عن‬ ‫االتجاه‬ ‫نفس‬ ‫فى‬ ‫المستمرة‬ ‫الطوارئ‬ ‫سلم‬ ‫درجات‬ ‫عدد‬ ‫يزيد‬ ‫ان‬ ‫يجوز‬ ‫ال‬
20
‫درجة‬
‫الساللم‬ ‫اشكال‬ ‫بعض‬
‫الداخلية‬
‫السكنية‬ ‫للوحدة‬ ‫الوظيفية‬ ‫العالقات‬
:
-
‫مساحات‬ ‫جدول‬
....
‫االجنحه‬ ‫نظام‬
:
‫للجناح‬ ‫الكليه‬ ‫المساحه‬
:
35
‫مربع‬ ‫متر‬
‫غرفتين‬ ‫نظام‬ ‫شقة‬ ‫مساحات‬ ‫جدول‬
:
‫غرفتين‬ ‫للشقه‬ ‫الكليه‬ ‫المساحه‬
:
81
‫متر‬
‫مربع‬
‫غرف‬ ‫ثالث‬ ‫نظام‬ ‫شقق‬ ‫مساحات‬ ‫جدول‬
‫غرف‬ ‫ثالث‬ ‫نظام‬ ‫شقه‬ ‫الكليه‬ ‫المساحه‬
:
97
‫م‬
2
‫غرف‬ ‫اربع‬ ‫نظام‬ ‫مساحات‬ ‫جدول‬
:
‫غرف‬ ‫اربع‬ ‫للشقه‬ ‫الكليه‬ ‫المساحه‬
:
113
‫م‬
2
‫التجارى‬
‫التجاري‬ ‫المركز‬ ‫تعريف‬
:
-
•
‫التجــارة‬ ‫أصــناف‬ ‫فيـه‬ ‫تتجمــع‬ ‫مكــان‬ ‫هـي‬ ‫التجاريــة‬ ‫المراكـز‬
‫العـــام‬ ‫اإلطعـــام‬ ‫وأمــاكن‬
"
‫المطـــاعم‬
"
‫اإلداريـــة‬ ‫والخـــدمات‬
‫متماسك‬ ‫واحد‬ ‫مجمع‬ ‫في‬ ‫ذلك‬ ‫كل‬ ،‫واالجتماعية‬
.
‫للمراكز‬ ‫التصميمية‬ ‫المعايير‬
‫رئيسية‬ ‫مداخل‬ ‫عدة‬ ‫فيها‬ ‫تتوفر‬ ‫واحدة‬ ‫معمارية‬ ‫كتلة‬ ‫المشروع‬ ‫اعتبار‬
‫مجموعة‬ ‫يضم‬ ‫كبير‬ ‫رئيسي‬ ‫داخلي‬ ‫بهو‬ ‫إلى‬ ‫منها‬ ‫الوصول‬ ‫يمكن‬ ‫أوفرعية‬
‫عناصر‬ ‫إلى‬ ‫تصل‬ ‫التي‬ ‫الطرقات‬ ‫من‬ ‫مجموعة‬ ‫منه‬ ‫ويتفرع‬ ‫الساللم‬ ‫من‬
‫المشروع‬
0
‫الربط‬ ‫مع‬ ‫فيه‬ ‫الموجودة‬ ‫الوظائف‬ ‫حسب‬ ‫أجزاء‬ ‫إلى‬ ‫المشروع‬ ‫تقسيم‬
‫األخذ‬ ‫مع‬ ‫مفتوحة‬ ‫كمناطق‬ ‫خضراء‬ ‫مسطحات‬ ‫توفير‬ ‫وإمكانية‬ ‫الفراغي‬
‫الوسط‬ ‫مع‬ ‫وتشكيله‬ ‫للمشروع‬ ‫المكونة‬ ‫العناصر‬ ‫عالقة‬ ‫االعتبار‬ ‫بعين‬
.
‫المحيط‬
‫التصميم‬ ‫عملية‬ ‫عند‬ ‫مراعتها‬ ‫يجب‬ ‫امور‬ ‫عدة‬ ‫هناك‬
.
‫التجارية‬ ‫المراكز‬
:
1
_
‫متناول‬ ‫وفي‬ ‫واضحة‬ ‫تكون‬ ‫بحيث‬ ‫العامة‬ ‫واالنشطة‬ ‫الخدمات‬ ‫وضع‬ ‫علي‬ ‫التركيز‬
‫الجميع‬
2
_
‫بعضها‬ ‫مع‬ ‫الحرفة‬ ‫في‬ ‫المتقربة‬ ‫التجارية‬ ‫المحالت‬ ‫تصنيف‬ ‫يجب‬
3
_
‫غير‬ ‫اخر‬ ‫فراغ‬ ‫باستعمال‬ ‫المعمارية‬ ‫الفراغات‬ ‫في‬ ‫التجاري‬ ‫التسلسل‬ ‫قطع‬ ‫عدم‬
‫تجاري‬
4
_
‫عرض‬ ‫زات‬ ‫تكون‬ ‫بحيث‬ ‫االطراف‬ ‫جميع‬ ‫من‬ ‫مفتوحة‬ ‫التجارية‬ ‫الممرات‬ ‫جعل‬ ‫محاولة‬
‫الزبون‬ ‫لحركة‬ ‫وتوجية‬ ‫انسيابية‬ ‫هناك‬ ‫يكون‬ ‫بحيث‬ ‫مناسب‬
5
_
‫الزبائن‬ ‫جزب‬ ‫عملية‬ ‫علي‬ ‫تعمل‬ ‫بحيث‬ ‫جيد‬ ‫بشكل‬ ‫التجارية‬ ‫المراكز‬ ‫تصمم‬ ‫ان‬ ‫يجب‬
6
_
‫المجاورة‬ ‫المباني‬ ‫مع‬ ‫مالئمة‬ ‫هناك‬ ‫يكون‬ ‫بحيث‬ ‫المبني‬ ‫شكل‬ ‫اختيار‬ ‫مراعاة‬ ‫يجب‬
7
_
‫األتي‬ ‫مراعاة‬ ‫يجب‬ ‫التجارية‬ ‫المراكز‬ ‫في‬ ‫الجمال‬ ‫عملية‬ ‫ولتحقيق‬
.
1
.
‫األتي‬ ‫حيث‬ ‫من‬ ‫لتجاري‬ ‫المركز‬ ‫في‬ ‫الوحدة‬ ‫تامين‬
-
_
‫أ‬
-
‫والمظالت‬ ‫االفقيةللسقوف‬ ‫الخطوط‬ ‫استمرار‬ ‫في‬
‫ب‬
-
‫الواجهه‬ ‫اكساء‬ ‫عملية‬ ‫في‬ ‫اثنين‬ ‫او‬ ‫مادة‬ ‫استعمال‬ ‫في‬
‫ج‬
_
‫خاص‬ ‫معماري‬ ‫طابع‬ ‫المركز‬ ‫أعطاء‬
‫د‬
_
‫السيارة‬ ‫وراكب‬ ‫المشاة‬ ‫يشعربة‬ ‫ان‬ ‫يجب‬ ‫المقياس‬
‫التجاري‬ ‫للجزء‬ ‫توضيحية‬ ‫اسكتشات‬
‫التجاري‬ ‫المركز‬ ‫لعناصر‬ ‫الوظيفية‬ ‫العالقات‬
:
-
‫فى‬ ‫العناصر‬ ‫توزيع‬ ‫طرق‬
‫التجارية‬ ‫المراكز‬
-
‫حسب‬ ‫أجزاء‬ ‫إلى‬ ‫المشروع‬ ‫تقسيم‬
‫الفراغي‬ ‫الربط‬ ‫مع‬ ‫فيه‬ ‫الموجودة‬ ‫الوظائف‬
‫ستارز‬ ‫ستى‬ ‫مثال‬
-
‫فراغ‬ ‫في‬ ‫بحرية‬ ‫المشروع‬ ‫عناصر‬ ‫توزيع‬
‫منتظم‬ ‫وبشكل‬ ‫سقف‬ ‫تحت‬ ‫كبير‬ ‫واحد‬
‫تاورز‬ ‫شانز‬ ‫مثال‬
‫التجارية‬ ‫المباني‬ ‫توجيه‬
‫قدر‬ ‫االبتعاد‬ ‫فيجب‬ ‫التجاري‬ ‫المركز‬ ‫كتلة‬ ‫اتجاه‬ ‫االعتبار‬ ‫بعين‬ ‫األخذ‬ ‫يجب‬
‫شرق‬ ‫الرئيسي‬ ‫المحور‬ ‫على‬ ‫الكتلة‬ ‫توجيه‬ ‫عن‬ ‫اإلمكان‬
–
‫غرب‬
.
‫وتكون‬ ‫المبنى‬ ‫عمق‬ ‫إلى‬ ‫تلج‬ ‫الغروب‬ ‫وفي‬ ‫الصباح‬ ‫في‬ ‫الشمس‬ ‫ألن‬
‫المحور‬ ‫يكون‬ ‫وبالتالي‬ ،‫حادة‬ ‫انعكاسات‬ ‫الشمس‬ ‫أشعة‬ ‫وتسبب‬ ‫مزعجة‬
‫جنوب‬ ‫الرئيسي‬
–
‫دون‬ ‫الفراغات‬ ‫معظم‬ ‫إلى‬ ‫الشمس‬ ‫تلج‬ ‫وبذلك‬ ،‫شمال‬
‫انزعاج‬
.
‫إلى‬ ‫للمساحات‬ ‫طبقا‬ ‫المحالت‬ ‫تنقسم‬
:
-
:Retail-1
‫عن‬ ‫تقل‬ ‫ال‬ ‫للعرض‬ ‫الطول‬ ‫ونسبة‬ ‫المحالت‬ ‫وحدات‬ ‫من‬ ‫وحده‬ ‫اصغر‬ ‫هي‬
3:1
‫وال‬
‫عن‬ ‫تزيد‬
4:1
‫اقتصادية‬ ‫لعوامل‬
.
:medium size user-2
‫ال‬ ‫مساحه‬ ‫يساوى‬Retail ‫مرات‬ ‫ثالث‬
:anchor store-3
‫من‬ ‫مساحته‬ ‫تصل‬
1000
‫إلى‬
5000
‫م‬
2
‫أخرى‬ ‫محالت‬ ‫على‬ ‫المستخدم‬ ‫ويمر‬ ‫إليها‬ ‫الناس‬ ‫جذب‬ ‫مطلوب‬ ‫أماكن‬ ‫في‬ ‫يوجد‬
‫إليه‬ ‫طريقه‬ ‫في‬
-
: departmental store -4
‫مساحة‬ ‫مثل‬ ‫مساحته‬Anchor ‫األدوار‬ ‫متعدد‬ ‫لكنه‬ ‫و‬
-
: super market-5
‫من‬ ‫مساحته‬
5000
‫إلى‬
20000
‫م‬
2
‫التجاري‬ ‫المركز‬ ‫لعناصر‬ ‫توزيعي‬ ‫مخطط‬
:
-
‫االتصال‬ ‫عناصر‬
‫ا‬
-
‫المتحركة‬ ‫الساللم‬
:
-
‫تصميمها‬ ‫شروط‬
:
-
1
-
ْ ‫ميلها‬ ‫زاوية‬ ‫تكون‬
30ْ
-
35
ْ ‫الزاوية‬ ‫تكون‬ ‫و‬
35
‫مساحة‬ ‫أقل‬ ‫تأخذ‬ ‫ألنها‬ ‫اقتصادية‬
ْ ‫الزاوية‬ ‫استخدام‬ ‫لكن‬ ‫و‬
30
‫أكثر‬ ‫هي‬ ‫و‬ ‫النفسية‬ ‫الراحة‬ ‫توفر‬ ‫ألنها‬ ‫مفضلة‬
‫أمانا‬
.
2
-
‫من‬ ‫يتراوح‬ ‫السلم‬ ‫عرض‬ ‫كون‬
60
‫سم‬
,
80
‫سم‬
,
100
‫سم‬
3
-
‫تكون‬ ‫المتحرك‬ ‫السلم‬ ‫سرعة‬
5.0
‫م‬
/
‫ث‬
‫الرأسية‬ ‫الحركة‬ ‫عناصر‬ ‫في‬ ‫االستخدام‬ ‫نسبة‬ ‫تكون‬
-
‫المتحركة‬ ‫الساللم‬
:
90
%
%
8
:
‫المصاعد‬
-
‫الثابتة‬ ‫الساللم‬
:
2
%
2
-
‫المصاعد‬
‫تشغل‬ ‫ألنها‬ ‫باستخدامها‬ ‫دائما‬ ‫يوصي‬
‫الناقلة‬ ‫السيور‬ ‫تشغله‬ ‫مما‬ ‫بكثير‬ ‫اقل‬ ‫حيز‬
‫تكلفة‬ ‫في‬ ‫اقل‬ ‫هي‬ ‫و‬ ‫المتحركة‬ ‫الساللم‬ ‫أو‬
‫تنقل‬ ‫و‬ ‫المتحركة‬ ‫الساللم‬ ‫من‬ ‫التشغيل‬
‫عربات‬ ‫من‬ ‫المتسوقين‬ ‫احتياجات‬ ‫معظم‬
‫تتميز‬ ‫كما‬ ‫المتحركة‬ ‫الكراسي‬ ‫إلي‬ ‫األطفال‬
‫المتحركة‬ ‫الساللم‬ ‫من‬ ‫أسرع‬ ‫بأنها‬
-
‫البانورامي‬ ‫المصعد‬
:
-
-
‫توفر‬ ‫ألنها‬ ‫الناس‬ ‫من‬ ‫لكثير‬ ‫المفضل‬ ‫هو‬
‫بأكمله‬ ‫الفراغ‬ ‫رؤية‬ ‫صعودهم‬ ‫عند‬ ‫للناس‬
-
‫الموالت‬ ‫و‬ ‫الفنادق‬ ‫في‬ ‫يستخدم‬
‫العادية‬ ‫الساللم‬
‫الهروب‬ ‫ساللم‬
‫يزيد‬ ‫التي‬ ‫وخاصة‬ ‫اإلداري‬ ‫المبنى‬ ‫في‬ ‫كبرى‬ ‫أهمية‬ ‫ذات‬ ‫الهروب‬ ‫ساللم‬
‫عن‬ ‫ارتفاعها‬
40
‫طابقا‬
.
‫علي‬ ‫يحتوى‬ ‫الذي‬ ‫والمبنى‬
200
‫للهروب‬ ‫سلم‬ ‫إلي‬ ‫يحتاج‬ ‫شخص‬
‫عرضه‬
100
‫أكثرمن‬ ‫علي‬ ‫يحتوى‬ ‫المبني‬ ‫كان‬ ‫إذا‬ ‫أما‬ ، ‫سم‬
200
‫عرضه‬ ‫سلم‬ ‫إلي‬ ‫فيحتاج‬ ‫شخص‬
125
‫سم‬
.
‫ينشأ‬ ‫أن‬ ‫يجب‬ ‫كما‬ ، ‫الهروب‬ ‫سلم‬ ‫نحو‬ ‫األبواب‬ ‫جميع‬ ‫تفتح‬ ‫أن‬ ‫ويجب‬
‫بالحريق‬ ‫تتأثر‬ ‫ال‬ ‫مواد‬ ‫من‬ ‫الهروب‬ ‫سلم‬
.
‫إلي‬ ‫مباشرة‬ ‫األرضي‬ ‫الطابق‬ ‫من‬ ‫الهروب‬ ‫سلم‬ ‫تؤدي‬ ‫أن‬ ‫ويفضل‬
‫الطريق‬ ‫إلي‬ ‫السلم‬ ‫باب‬ ‫يفتح‬ ‫أن‬ ‫يجب‬ ‫كما‬ ، ‫الخارجي‬ ‫الطريق‬
‫الجراجات‬
‫األرصفة‬ ‫بجوار‬ ‫المواقف‬ ‫تصميم‬ ‫و‬ ‫تخطيط‬
‫بالشوارع‬ ‫األرصفة‬ ‫جانب‬ ‫إلى‬ ‫توجد‬ ‫التي‬ ‫المواقف‬ ‫تقسيم‬ ‫يمكن‬
‫نوعين‬ ‫إلى‬
:
‫الموازية‬ ‫المواقف‬
‫المائلة‬ ‫والمواقف‬
علي بدي اف.pdfىئأاكبععخيبحعيحبحيي6حيح6حب6ح

علي بدي اف.pdfىئأاكبععخيبحعيحبحيي6حيح6حب6ح

  • 1.
    ‫ادارى‬ ‫تجارى‬ ‫سكنى‬‫مبنى‬ ‫مشروع‬ ‫الى‬ ‫مقدم‬ : - ‫د‬ / ‫حسن‬ ‫حسين‬ ‫م‬ . ‫م‬ / ‫حسين‬ ‫سالى‬ ‫م‬ / ‫احمد‬ ‫سلمى‬ ‫الطالب‬ ‫من‬ ‫مقدم‬ / ‫علي‬ ‫مصطفي‬ ‫علي‬ ID/19204114
  • 2.
    ‫الفهرس‬ * ‫التصميميه‬ ‫اﻻسس‬ 1 - ‫للسكنى‬ ‫التصميميه‬‫اﻻسس‬ 2 - ‫للتجارى‬ ‫التصميميه‬ ‫اﻻسس‬ 3 - ‫لﻼدارى‬ ‫التصميميه‬ ‫اﻻسس‬ 4 - ‫للكراجات‬ ‫التصميمه‬ ‫اﻻسس‬ * ‫المشابه‬ ‫اﻻمثله‬
  • 3.
    * ‫للسكنى‬ ‫التصميميه‬ ‫اﻻسس‬ ‫السكنيه‬‫الوحده‬ ‫عناصر‬ : 1 - ‫المدخل‬ 2 - ‫المعيشه‬ ‫صالة‬ 3 - ‫الصالون‬ 4 - ‫الطعام‬ ‫غرفة‬ 5 - ‫النوم‬ ‫غرفة‬ 6 - ‫المطبخ‬ 7 - ‫الحمام‬
  • 4.
    ‫المدخل‬ ‫صالة‬ - ‫ان‬ ‫يجب‬‫المدخل‬ ‫صالة‬ ‫كاف‬ ‫بشكل‬ ‫واسعة‬ ‫تكون‬ ‫االستقبال‬ ‫إلمكانية‬ ‫مريح‬ ‫بشكل‬ . - ‫اهمية‬ ‫االكثر‬ ‫االماكن‬ ‫نمر‬ ‫التى‬ ‫خاص‬ ‫وبشكل‬ ‫الدرج‬ ‫وكمثال‬ ‫كثيرا‬ ‫بها‬ ‫الطوابق‬ ‫الى‬ ‫يقود‬ ‫الذى‬ ‫مرتبطة‬ ‫تكون‬ ‫ان‬ ‫يجب‬ ‫بصالة‬ ‫مباشر‬ ‫بشكل‬ ‫ذلك‬ ‫مع‬ ‫ويفضل‬ ‫المدخل‬ ‫مفصوال‬ ‫المطبخ‬ ‫يكون‬ ‫ان‬ ‫بصالة‬ ‫او‬ ‫الخدمة‬ ‫بغرفة‬ ‫اما‬ ‫البيت‬ ‫عن‬ ‫الروائح‬ ‫لمنع‬ .
  • 5.
    ‫النوم‬ ‫غرف‬ • ‫عن‬ ‫تقل‬‫ال‬ ‫ان‬ ‫يجب‬ ‫النوم‬ ‫غرفة‬ ‫مساحة‬ 2 ‫متر‬ 20 • ‫التهوية‬ ‫لضمان‬ ‫بالغرفة‬ ‫فتحات‬ ‫عمل‬ ‫يجب‬ ‫ودخول‬ ‫الهواء‬ ‫وتجدد‬ ‫الشمس‬ . • ‫والشرق‬ ‫للشمال‬ ‫التوجيه‬ ‫يفضل‬ . • ‫المطل‬ ‫على‬ ‫التوجيه‬ ‫يفضل‬ • ‫اال‬ ‫يجب‬ ‫الحائطية‬ ‫الخزائن‬ ‫باستثناء‬ ‫العين‬ ‫ارتفاع‬ ‫الخزانة‬ ‫ارتفاع‬ ‫يتجاوز‬ ‫من‬ ‫هو‬ ‫المالئم‬ ‫واالرتفاع‬ 4.1 - 5.1 ‫م‬ ‫النوم‬ ‫غرف‬ ‫لخزائن‬ ‫بالنسبة‬ ‫خصوصا‬ ‫االرتفاع‬ ‫ذات‬ ‫الخزائن‬ ‫تجنب‬ ‫ويجب‬ 8.1 . • ‫غرف‬ ‫اكبر‬ ‫الرئيسية‬ ‫النوم‬ ‫غرفة‬ ‫تكون‬ ‫حمام‬ ‫و‬ ‫اثاث‬ ‫من‬ ‫ملحقاتها‬ ‫تتعدد‬ ‫و‬ ‫النوم‬ ‫مالبس‬ ‫غرفة‬ ‫و‬ ‫مستقل‬ .
  • 7.
    ‫المعيشه‬ ‫غرف‬ - ‫الضيوف‬ ‫الستقبال‬‫المعيشة‬ ‫صالة‬ ‫تستخدم‬ ‫الصغيرة‬ ‫السكنية‬ ‫الوحدات‬ ‫فى‬ ‫خاصة‬ . - ‫بين‬ ‫تتراوح‬ ‫ما‬ ‫غالبا‬ ‫المعيشة‬ ‫صالة‬ ‫مساحة‬ 25 - 30 ‫مربع‬ ‫متر‬ . - ‫المكتبة‬ : ‫الشمال‬ ‫اتجاه‬ ‫يأخذ‬ ‫عادة‬ ‫الركن‬ ‫هذا‬ ‫بطول‬ ‫للكتب‬ ‫رف‬ ‫على‬ ‫ويحتوى‬ 1 ‫ان‬ ‫ويمكن‬ ‫م‬ ‫من‬ ‫يحوى‬ 30 - 40 ‫مجلدا‬ . - ‫االضاءة‬ : ‫لتوحي‬ ‫وكافية‬ ‫مناسبة‬ ‫تكون‬ ‫أن‬ ‫يجب‬ ‫بالراحة‬ . - ‫التهوية‬ : ‫حركة‬ ‫لضمان‬ ‫للتهوية‬ ‫فتحات‬ ‫عمل‬ ‫بالغرفة‬ ‫باستمرار‬ ‫الهواء‬ ‫وتجدد‬ .
  • 8.
    ‫الطعام‬ ‫غرف‬ • ‫على‬ ‫الطعام‬‫غرف‬ ‫تكون‬ ‫ان‬ ‫الضرورى‬ ‫من‬ ‫األوفيس‬ ‫أو‬ ‫بالمطبخ‬ ‫مباشر‬ ‫اتصال‬ . • ‫عالقة‬ ‫هناك‬ ‫تكون‬ ‫ان‬ ‫الضرورى‬ ‫من‬ ‫وليس‬ ‫المسكن‬ ‫اجزاء‬ ‫باقى‬ ‫وبين‬ ‫بينها‬ ‫مباشرة‬ . • ‫نفسه‬ ‫المطبخ‬ ‫فى‬ ‫تكون‬ ‫وقد‬ . • ‫جزءا‬ ‫تصبح‬ ‫ان‬ ‫يمكن‬ ‫الواسعة‬ ‫االبواب‬ ‫بفضل‬ ‫المعيشة‬ ‫غرفة‬ ‫من‬ . • ‫االبواب‬ ‫وضع‬ ‫الحالة‬ ‫هذه‬ ‫فى‬ ‫ويفضل‬ ‫الزوايا‬ ‫من‬ ‫بالقرب‬ . • ‫بين‬ ‫ما‬ ‫تقريبا‬ ‫تتراوح‬ ‫مساحتها‬ 20 – 25 ‫متر‬ ‫مربع‬ .
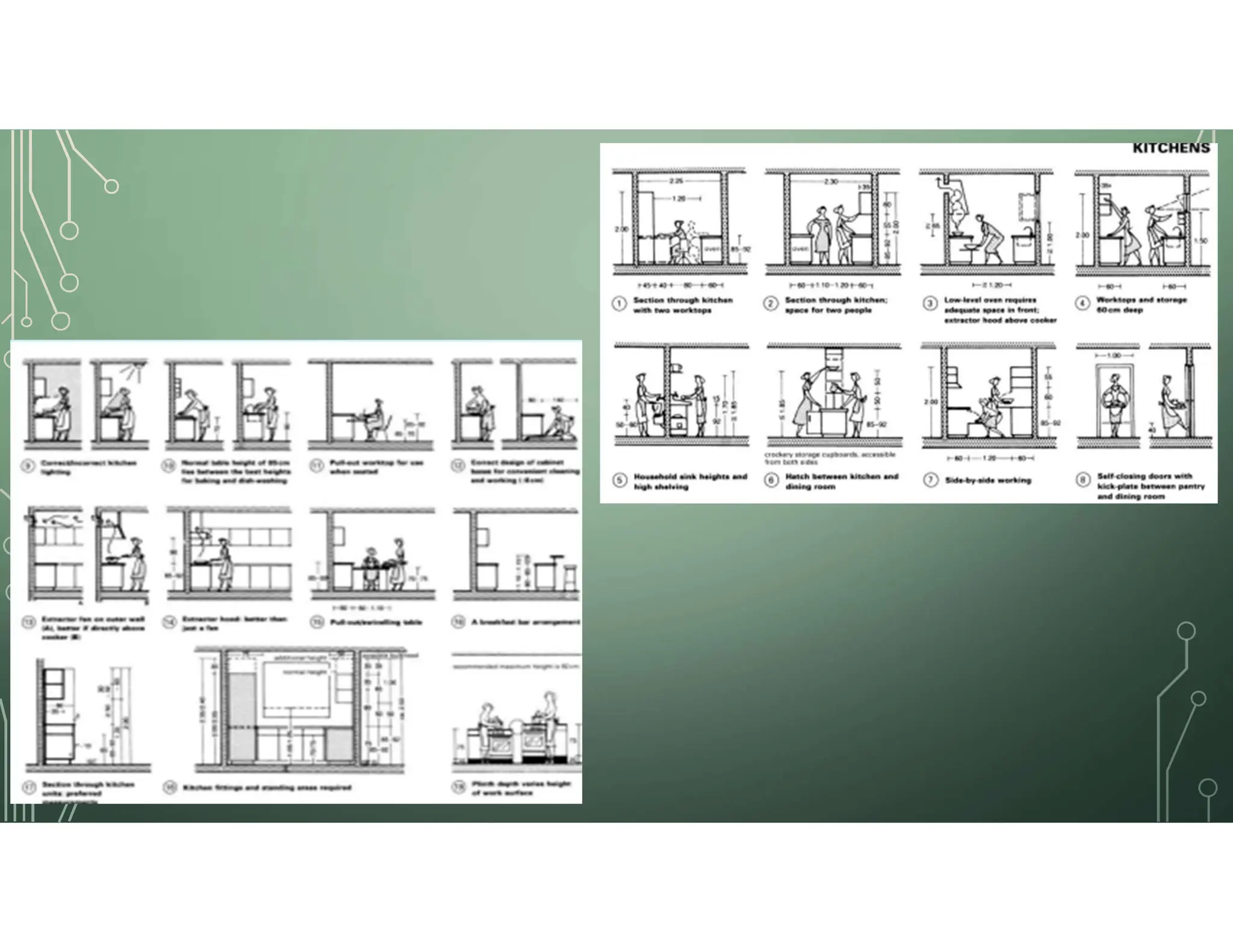
  • 10.
    ‫المطابخ‬ - ‫بغرفة‬ ‫جيد‬ ‫اتصال‬‫على‬ ‫تكون‬ ‫ان‬ ‫يجب‬ ‫والحمام‬ ‫الخدمة‬ ‫اماكن‬ ‫وكافة‬ ‫الطعام‬ . - ‫وللحركة‬ ‫للمرور‬ ‫المناسبة‬ ‫الفراغات‬ ‫وجود‬ . - ‫الجنوب‬ ‫او‬ ‫الجنوب‬ ‫ناحية‬ ‫المطابخ‬ ‫توجه‬ ‫الشرقى‬ . - ‫ب‬ ‫للمطبخ‬ ‫بعد‬ ‫أقل‬ 30.2 ‫م‬ . - ‫الموقد‬ ‫عن‬ ‫بعيدا‬ ‫الثالجة‬ ‫توضع‬ ‫ان‬ ‫يراعي‬ ‫الجلي‬ ‫حوض‬ ‫و‬ . - ‫االمكان‬ ‫قدر‬ ‫طبيعية‬ ‫االضاءة‬ ‫تكون‬ ‫أن‬ ‫يجب‬ . - ‫الناتجة‬ ‫الروائح‬ ‫من‬ ‫للتخلص‬ ‫شفاط‬ ‫وضع‬ ‫المطبخ‬ ‫من‬ . ‫خدمات‬ - ‫ودواليب‬ ‫ألدراج‬ ‫كافية‬ ‫مساحات‬ ‫وجود‬ ‫التخزين‬ .
  • 12.
    ‫الحمامات‬ ‫اكثر‬ ‫او‬ ‫نافذة‬‫طريق‬ ‫عن‬ ‫طبيعيا‬ ‫مضاءة‬ ‫تكون‬ ‫ان‬ ‫يجب‬ ‫متر‬ ‫نصف‬ ‫من‬ ‫اقل‬ ‫النوافذ‬ ‫هذه‬ ‫مساحة‬ ‫تكون‬ ‫وان‬ ‫مربع‬ . - ‫بل‬ ‫وحدها‬ ‫االبواب‬ ‫او‬ ‫النوافذ‬ ‫على‬ ‫االعتماد‬ ‫يجوز‬ ‫ال‬ ‫للتهوية‬ ‫ماسورة‬ ‫مياه‬ ‫دورة‬ ‫كل‬ ‫فى‬ ‫يكون‬ ‫ان‬ ‫يجب‬ ‫ﻻلحتراق‬ ‫قابلة‬ ‫غير‬ ‫مادة‬ ‫من‬ . - ‫حوائطها‬ ‫تكسى‬ ‫كما‬ ‫المياه‬ ‫دورات‬ ‫ارضيات‬ ‫تصنع‬ ‫عن‬ ‫يقل‬ ‫ال‬ ‫بارتفاع‬ 50.1 ‫الرطوبة‬ ‫تمتص‬ ‫ال‬ ‫عادة‬ ‫م‬ ‫وتعتبر‬ ‫اتالفها‬ ‫دون‬ ‫تنظيفها‬ ‫او‬ ‫غسيلها‬ ‫ويسهل‬ ‫لعمل‬ ‫الجيدة‬ ‫المود‬ ‫من‬ ‫والرخام‬ ‫السيراميك‬ ‫األرضيات‬ . - ‫الشرقى‬ ‫الجنوبى‬ ‫هو‬ ‫للحمامات‬ ‫المالئم‬ ‫الوضع‬ ‫ان‬ . - ‫لسهولة‬ ‫وذلك‬ ‫المطابخ‬ ‫من‬ ‫قريبا‬ ‫يكون‬ ‫ان‬ ‫يجب‬ ‫الصرف‬ ‫مواسير‬ ‫تجميع‬ . - ‫النوم‬ ‫غرف‬ ‫من‬ ‫بالقرب‬ ‫الحمام‬ ‫مكان‬ ‫اختيار‬ ‫يكون‬ ‫االستخدام‬ ‫لسهولة‬ . - ‫عن‬ ‫تقل‬ ‫ال‬ ‫ان‬ ‫يجب‬ ‫الحمام‬ ‫مساحة‬ 5.1 ‫متر‬ * 1 ‫متر‬ .
  • 14.
  • 15.
  • 16.
    ‫الساللم‬ : 1 - ‫عن‬ ‫الصافى‬ ‫الدرج‬‫عرض‬ ‫اليقل‬ ‫السكنية‬ ‫للفيالت‬ 2.1 ‫عرض‬ ‫يقل‬ ‫وال‬ ‫الواحد‬ ‫االتجاه‬ ‫فى‬ ‫م‬ ‫عن‬ ‫الصدفة‬ ‫او‬ ‫البسطة‬ 20.1 ‫عن‬ ‫القائمة‬ ‫ارتفاع‬ ‫يزيد‬ ‫وال‬ ‫م‬ 17 ‫عن‬ ‫النايمة‬ ‫عرض‬ ‫يقل‬ ‫وال‬ ‫سم‬ 28 ‫سم‬ 2 - ‫عن‬ ‫الداخلى‬ ‫الدرج‬ ‫عرض‬ ‫اليقل‬ ‫ان‬ ‫يجب‬ ‫السكنية‬ ‫العمارات‬ ‫فى‬ 5.1 ‫الواحد‬ ‫االتجاه‬ ‫فى‬ ‫م‬ ‫عن‬ ‫والصدفة‬ ‫البسطة‬ ‫وعرض‬ 50.1 ‫عن‬ ‫القائمة‬ ‫ارتفاع‬ ‫واليزيد‬ ‫م‬ 16 ‫ثوفير‬ ‫يتم‬ ‫ان‬ ‫على‬ ‫سم‬ ‫المباشرة‬ ‫واالضاءة‬ ‫التهوية‬ 3 - ‫التالية‬ ‫للمعادلة‬ ‫طبقا‬ ‫السلم‬ ‫لدرجة‬ ‫والنائمة‬ ‫القايمة‬ ‫ابعاد‬ ‫تحديد‬ ‫يتم‬ : ‫النائمة‬ ‫ارتفاع‬ ‫ضعف‬ + ‫النائمة‬ ‫عرض‬ = 60 - 65 ‫سم‬ 4 - ‫لنهايته‬ ‫السلم‬ ‫بداية‬ ‫من‬ ‫الدرجات‬ ‫وابعاد‬ ‫قياسات‬ ‫تتماثل‬ ‫ان‬ ‫يجب‬ 5 - ‫عن‬ ‫المبنى‬ ‫ارتفاع‬ ‫زاد‬ ‫اذا‬ 4 ‫للشروط‬ ‫مطابقا‬ ‫هروب‬ ‫بسلم‬ ‫يزود‬ ‫ان‬ ‫فيجب‬ ‫ادوار‬ ‫القياسية‬ 6 - ‫عن‬ ‫الواحدة‬ ‫القلبة‬ ‫فى‬ ‫الدرجات‬ ‫عدد‬ ‫يتجاوز‬ ‫ال‬ ‫ان‬ ‫يجب‬ 14 ‫درجة‬ 7 - ‫هو‬ ‫الدرج‬ ‫فوق‬ ‫ﻻلرتفاع‬ ‫االدنى‬ ‫الحد‬ ‫يكون‬ ‫ان‬ ‫يجب‬ 220 ‫سم‬ 8 - ‫الداخلية‬ ‫الساللم‬ ‫عدا‬ ‫فيما‬ ‫للحريق‬ ‫مقاومة‬ ‫مواد‬ ‫من‬ ‫الساللم‬ ‫بناء‬ ‫يتم‬ ‫ان‬ ‫يجب‬ 9 - ‫صناعية‬ ‫وتهوية‬ ‫باضاءة‬ ‫الطبيعية‬ ‫واالضاءة‬ ‫التهوية‬ ‫عن‬ ‫االستعاضة‬ ‫يمكن‬ 10 - ‫عن‬ ‫الدرج‬ ‫درابزين‬ ‫ارتفاع‬ ‫يقل‬ ‫اال‬ ‫يجب‬ 100 ‫سم‬ 11 - ‫اليها‬ ‫الوصول‬ ‫يسهل‬ ‫واضحة‬ ‫اماكن‬ ‫فى‬ ‫الساللم‬ ‫تكون‬ ‫ان‬ ‫يجب‬ 12 - ‫عن‬ ‫االتجاه‬ ‫نفس‬ ‫فى‬ ‫المستمرة‬ ‫الطوارئ‬ ‫سلم‬ ‫درجات‬ ‫عدد‬ ‫يزيد‬ ‫ان‬ ‫يجوز‬ ‫ال‬ 20 ‫درجة‬
  • 17.
  • 18.
  • 19.
    ‫مساحات‬ ‫جدول‬ .... ‫االجنحه‬ ‫نظام‬ : ‫للجناح‬‫الكليه‬ ‫المساحه‬ : 35 ‫مربع‬ ‫متر‬
  • 20.
    ‫غرفتين‬ ‫نظام‬ ‫شقة‬‫مساحات‬ ‫جدول‬ : ‫غرفتين‬ ‫للشقه‬ ‫الكليه‬ ‫المساحه‬ : 81 ‫متر‬ ‫مربع‬
  • 21.
    ‫غرف‬ ‫ثالث‬ ‫نظام‬‫شقق‬ ‫مساحات‬ ‫جدول‬ ‫غرف‬ ‫ثالث‬ ‫نظام‬ ‫شقه‬ ‫الكليه‬ ‫المساحه‬ : 97 ‫م‬ 2
  • 22.
    ‫غرف‬ ‫اربع‬ ‫نظام‬‫مساحات‬ ‫جدول‬ : ‫غرف‬ ‫اربع‬ ‫للشقه‬ ‫الكليه‬ ‫المساحه‬ : 113 ‫م‬ 2
  • 23.
    ‫التجارى‬ ‫التجاري‬ ‫المركز‬ ‫تعريف‬ : - • ‫التجــارة‬‫أصــناف‬ ‫فيـه‬ ‫تتجمــع‬ ‫مكــان‬ ‫هـي‬ ‫التجاريــة‬ ‫المراكـز‬ ‫العـــام‬ ‫اإلطعـــام‬ ‫وأمــاكن‬ " ‫المطـــاعم‬ " ‫اإلداريـــة‬ ‫والخـــدمات‬ ‫متماسك‬ ‫واحد‬ ‫مجمع‬ ‫في‬ ‫ذلك‬ ‫كل‬ ،‫واالجتماعية‬ . ‫للمراكز‬ ‫التصميمية‬ ‫المعايير‬ ‫رئيسية‬ ‫مداخل‬ ‫عدة‬ ‫فيها‬ ‫تتوفر‬ ‫واحدة‬ ‫معمارية‬ ‫كتلة‬ ‫المشروع‬ ‫اعتبار‬ ‫مجموعة‬ ‫يضم‬ ‫كبير‬ ‫رئيسي‬ ‫داخلي‬ ‫بهو‬ ‫إلى‬ ‫منها‬ ‫الوصول‬ ‫يمكن‬ ‫أوفرعية‬ ‫عناصر‬ ‫إلى‬ ‫تصل‬ ‫التي‬ ‫الطرقات‬ ‫من‬ ‫مجموعة‬ ‫منه‬ ‫ويتفرع‬ ‫الساللم‬ ‫من‬ ‫المشروع‬ 0 ‫الربط‬ ‫مع‬ ‫فيه‬ ‫الموجودة‬ ‫الوظائف‬ ‫حسب‬ ‫أجزاء‬ ‫إلى‬ ‫المشروع‬ ‫تقسيم‬ ‫األخذ‬ ‫مع‬ ‫مفتوحة‬ ‫كمناطق‬ ‫خضراء‬ ‫مسطحات‬ ‫توفير‬ ‫وإمكانية‬ ‫الفراغي‬ ‫الوسط‬ ‫مع‬ ‫وتشكيله‬ ‫للمشروع‬ ‫المكونة‬ ‫العناصر‬ ‫عالقة‬ ‫االعتبار‬ ‫بعين‬ . ‫المحيط‬
  • 24.
    ‫التصميم‬ ‫عملية‬ ‫عند‬‫مراعتها‬ ‫يجب‬ ‫امور‬ ‫عدة‬ ‫هناك‬ . ‫التجارية‬ ‫المراكز‬ : 1 _ ‫متناول‬ ‫وفي‬ ‫واضحة‬ ‫تكون‬ ‫بحيث‬ ‫العامة‬ ‫واالنشطة‬ ‫الخدمات‬ ‫وضع‬ ‫علي‬ ‫التركيز‬ ‫الجميع‬ 2 _ ‫بعضها‬ ‫مع‬ ‫الحرفة‬ ‫في‬ ‫المتقربة‬ ‫التجارية‬ ‫المحالت‬ ‫تصنيف‬ ‫يجب‬ 3 _ ‫غير‬ ‫اخر‬ ‫فراغ‬ ‫باستعمال‬ ‫المعمارية‬ ‫الفراغات‬ ‫في‬ ‫التجاري‬ ‫التسلسل‬ ‫قطع‬ ‫عدم‬ ‫تجاري‬ 4 _ ‫عرض‬ ‫زات‬ ‫تكون‬ ‫بحيث‬ ‫االطراف‬ ‫جميع‬ ‫من‬ ‫مفتوحة‬ ‫التجارية‬ ‫الممرات‬ ‫جعل‬ ‫محاولة‬ ‫الزبون‬ ‫لحركة‬ ‫وتوجية‬ ‫انسيابية‬ ‫هناك‬ ‫يكون‬ ‫بحيث‬ ‫مناسب‬ 5 _ ‫الزبائن‬ ‫جزب‬ ‫عملية‬ ‫علي‬ ‫تعمل‬ ‫بحيث‬ ‫جيد‬ ‫بشكل‬ ‫التجارية‬ ‫المراكز‬ ‫تصمم‬ ‫ان‬ ‫يجب‬ 6 _ ‫المجاورة‬ ‫المباني‬ ‫مع‬ ‫مالئمة‬ ‫هناك‬ ‫يكون‬ ‫بحيث‬ ‫المبني‬ ‫شكل‬ ‫اختيار‬ ‫مراعاة‬ ‫يجب‬ 7 _ ‫األتي‬ ‫مراعاة‬ ‫يجب‬ ‫التجارية‬ ‫المراكز‬ ‫في‬ ‫الجمال‬ ‫عملية‬ ‫ولتحقيق‬ . 1 . ‫األتي‬ ‫حيث‬ ‫من‬ ‫لتجاري‬ ‫المركز‬ ‫في‬ ‫الوحدة‬ ‫تامين‬ - _ ‫أ‬ - ‫والمظالت‬ ‫االفقيةللسقوف‬ ‫الخطوط‬ ‫استمرار‬ ‫في‬ ‫ب‬ - ‫الواجهه‬ ‫اكساء‬ ‫عملية‬ ‫في‬ ‫اثنين‬ ‫او‬ ‫مادة‬ ‫استعمال‬ ‫في‬ ‫ج‬ _ ‫خاص‬ ‫معماري‬ ‫طابع‬ ‫المركز‬ ‫أعطاء‬ ‫د‬ _ ‫السيارة‬ ‫وراكب‬ ‫المشاة‬ ‫يشعربة‬ ‫ان‬ ‫يجب‬ ‫المقياس‬
  • 25.
  • 26.
    ‫التجاري‬ ‫المركز‬ ‫لعناصر‬‫الوظيفية‬ ‫العالقات‬ : -
  • 27.
    ‫فى‬ ‫العناصر‬ ‫توزيع‬‫طرق‬ ‫التجارية‬ ‫المراكز‬ - ‫حسب‬ ‫أجزاء‬ ‫إلى‬ ‫المشروع‬ ‫تقسيم‬ ‫الفراغي‬ ‫الربط‬ ‫مع‬ ‫فيه‬ ‫الموجودة‬ ‫الوظائف‬ ‫ستارز‬ ‫ستى‬ ‫مثال‬ - ‫فراغ‬ ‫في‬ ‫بحرية‬ ‫المشروع‬ ‫عناصر‬ ‫توزيع‬ ‫منتظم‬ ‫وبشكل‬ ‫سقف‬ ‫تحت‬ ‫كبير‬ ‫واحد‬ ‫تاورز‬ ‫شانز‬ ‫مثال‬
  • 28.
    ‫التجارية‬ ‫المباني‬ ‫توجيه‬ ‫قدر‬‫االبتعاد‬ ‫فيجب‬ ‫التجاري‬ ‫المركز‬ ‫كتلة‬ ‫اتجاه‬ ‫االعتبار‬ ‫بعين‬ ‫األخذ‬ ‫يجب‬ ‫شرق‬ ‫الرئيسي‬ ‫المحور‬ ‫على‬ ‫الكتلة‬ ‫توجيه‬ ‫عن‬ ‫اإلمكان‬ – ‫غرب‬ . ‫وتكون‬ ‫المبنى‬ ‫عمق‬ ‫إلى‬ ‫تلج‬ ‫الغروب‬ ‫وفي‬ ‫الصباح‬ ‫في‬ ‫الشمس‬ ‫ألن‬ ‫المحور‬ ‫يكون‬ ‫وبالتالي‬ ،‫حادة‬ ‫انعكاسات‬ ‫الشمس‬ ‫أشعة‬ ‫وتسبب‬ ‫مزعجة‬ ‫جنوب‬ ‫الرئيسي‬ – ‫دون‬ ‫الفراغات‬ ‫معظم‬ ‫إلى‬ ‫الشمس‬ ‫تلج‬ ‫وبذلك‬ ،‫شمال‬ ‫انزعاج‬ .
  • 29.
    ‫إلى‬ ‫للمساحات‬ ‫طبقا‬‫المحالت‬ ‫تنقسم‬ : - :Retail-1 ‫عن‬ ‫تقل‬ ‫ال‬ ‫للعرض‬ ‫الطول‬ ‫ونسبة‬ ‫المحالت‬ ‫وحدات‬ ‫من‬ ‫وحده‬ ‫اصغر‬ ‫هي‬ 3:1 ‫وال‬ ‫عن‬ ‫تزيد‬ 4:1 ‫اقتصادية‬ ‫لعوامل‬ . :medium size user-2 ‫ال‬ ‫مساحه‬ ‫يساوى‬Retail ‫مرات‬ ‫ثالث‬ :anchor store-3 ‫من‬ ‫مساحته‬ ‫تصل‬ 1000 ‫إلى‬ 5000 ‫م‬ 2 ‫أخرى‬ ‫محالت‬ ‫على‬ ‫المستخدم‬ ‫ويمر‬ ‫إليها‬ ‫الناس‬ ‫جذب‬ ‫مطلوب‬ ‫أماكن‬ ‫في‬ ‫يوجد‬ ‫إليه‬ ‫طريقه‬ ‫في‬ - : departmental store -4 ‫مساحة‬ ‫مثل‬ ‫مساحته‬Anchor ‫األدوار‬ ‫متعدد‬ ‫لكنه‬ ‫و‬ - : super market-5 ‫من‬ ‫مساحته‬ 5000 ‫إلى‬ 20000 ‫م‬ 2
  • 30.
  • 31.
    ‫االتصال‬ ‫عناصر‬ ‫ا‬ - ‫المتحركة‬ ‫الساللم‬ : - ‫تصميمها‬‫شروط‬ : - 1 - ْ ‫ميلها‬ ‫زاوية‬ ‫تكون‬ 30ْ - 35 ْ ‫الزاوية‬ ‫تكون‬ ‫و‬ 35 ‫مساحة‬ ‫أقل‬ ‫تأخذ‬ ‫ألنها‬ ‫اقتصادية‬ ْ ‫الزاوية‬ ‫استخدام‬ ‫لكن‬ ‫و‬ 30 ‫أكثر‬ ‫هي‬ ‫و‬ ‫النفسية‬ ‫الراحة‬ ‫توفر‬ ‫ألنها‬ ‫مفضلة‬ ‫أمانا‬ . 2 - ‫من‬ ‫يتراوح‬ ‫السلم‬ ‫عرض‬ ‫كون‬ 60 ‫سم‬ , 80 ‫سم‬ , 100 ‫سم‬ 3 - ‫تكون‬ ‫المتحرك‬ ‫السلم‬ ‫سرعة‬ 5.0 ‫م‬ / ‫ث‬ ‫الرأسية‬ ‫الحركة‬ ‫عناصر‬ ‫في‬ ‫االستخدام‬ ‫نسبة‬ ‫تكون‬ - ‫المتحركة‬ ‫الساللم‬ : 90 % % 8 : ‫المصاعد‬ - ‫الثابتة‬ ‫الساللم‬ : 2 %
  • 33.
    2 - ‫المصاعد‬ ‫تشغل‬ ‫ألنها‬ ‫باستخدامها‬‫دائما‬ ‫يوصي‬ ‫الناقلة‬ ‫السيور‬ ‫تشغله‬ ‫مما‬ ‫بكثير‬ ‫اقل‬ ‫حيز‬ ‫تكلفة‬ ‫في‬ ‫اقل‬ ‫هي‬ ‫و‬ ‫المتحركة‬ ‫الساللم‬ ‫أو‬ ‫تنقل‬ ‫و‬ ‫المتحركة‬ ‫الساللم‬ ‫من‬ ‫التشغيل‬ ‫عربات‬ ‫من‬ ‫المتسوقين‬ ‫احتياجات‬ ‫معظم‬ ‫تتميز‬ ‫كما‬ ‫المتحركة‬ ‫الكراسي‬ ‫إلي‬ ‫األطفال‬ ‫المتحركة‬ ‫الساللم‬ ‫من‬ ‫أسرع‬ ‫بأنها‬ - ‫البانورامي‬ ‫المصعد‬ : - - ‫توفر‬ ‫ألنها‬ ‫الناس‬ ‫من‬ ‫لكثير‬ ‫المفضل‬ ‫هو‬ ‫بأكمله‬ ‫الفراغ‬ ‫رؤية‬ ‫صعودهم‬ ‫عند‬ ‫للناس‬ - ‫الموالت‬ ‫و‬ ‫الفنادق‬ ‫في‬ ‫يستخدم‬
  • 34.
  • 35.
    ‫الهروب‬ ‫ساللم‬ ‫يزيد‬ ‫التي‬‫وخاصة‬ ‫اإلداري‬ ‫المبنى‬ ‫في‬ ‫كبرى‬ ‫أهمية‬ ‫ذات‬ ‫الهروب‬ ‫ساللم‬ ‫عن‬ ‫ارتفاعها‬ 40 ‫طابقا‬ . ‫علي‬ ‫يحتوى‬ ‫الذي‬ ‫والمبنى‬ 200 ‫للهروب‬ ‫سلم‬ ‫إلي‬ ‫يحتاج‬ ‫شخص‬ ‫عرضه‬ 100 ‫أكثرمن‬ ‫علي‬ ‫يحتوى‬ ‫المبني‬ ‫كان‬ ‫إذا‬ ‫أما‬ ، ‫سم‬ 200 ‫عرضه‬ ‫سلم‬ ‫إلي‬ ‫فيحتاج‬ ‫شخص‬ 125 ‫سم‬ . ‫ينشأ‬ ‫أن‬ ‫يجب‬ ‫كما‬ ، ‫الهروب‬ ‫سلم‬ ‫نحو‬ ‫األبواب‬ ‫جميع‬ ‫تفتح‬ ‫أن‬ ‫ويجب‬ ‫بالحريق‬ ‫تتأثر‬ ‫ال‬ ‫مواد‬ ‫من‬ ‫الهروب‬ ‫سلم‬ . ‫إلي‬ ‫مباشرة‬ ‫األرضي‬ ‫الطابق‬ ‫من‬ ‫الهروب‬ ‫سلم‬ ‫تؤدي‬ ‫أن‬ ‫ويفضل‬ ‫الطريق‬ ‫إلي‬ ‫السلم‬ ‫باب‬ ‫يفتح‬ ‫أن‬ ‫يجب‬ ‫كما‬ ، ‫الخارجي‬ ‫الطريق‬
  • 36.
    ‫الجراجات‬ ‫األرصفة‬ ‫بجوار‬ ‫المواقف‬‫تصميم‬ ‫و‬ ‫تخطيط‬ ‫بالشوارع‬ ‫األرصفة‬ ‫جانب‬ ‫إلى‬ ‫توجد‬ ‫التي‬ ‫المواقف‬ ‫تقسيم‬ ‫يمكن‬ ‫نوعين‬ ‫إلى‬ : ‫الموازية‬ ‫المواقف‬ ‫المائلة‬ ‫والمواقف‬