Embed presentation
Download to read offline










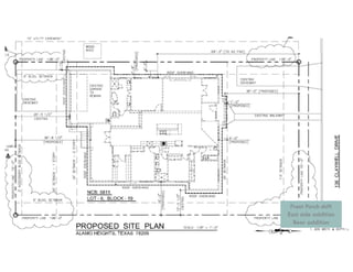
This document provides information about proposed renovations and additions to a single-family home located at 136 Claywell. It includes details about the existing structure and proposed demolition, new building materials, increased height, lot and floor area ratio calculations, historical review, ARB approval, and public notification process. The proposed work includes a front porch shift, east side addition, rear addition, new siding and roofing materials, and an increase in lot coverage from 24% to 35% and floor area ratio from 24% to 35%.









