QTY. SITE BOLTS LENGTH
3/4"Ø A325N4 1 3/4"
3/4"Ø A325N4 2"
GRID LOC REF DWGQTY
4-/A.5-A E11
A ISSUED FOR APPROVAL 17/07/14 BW
REV DESCRIPTION DATE BY
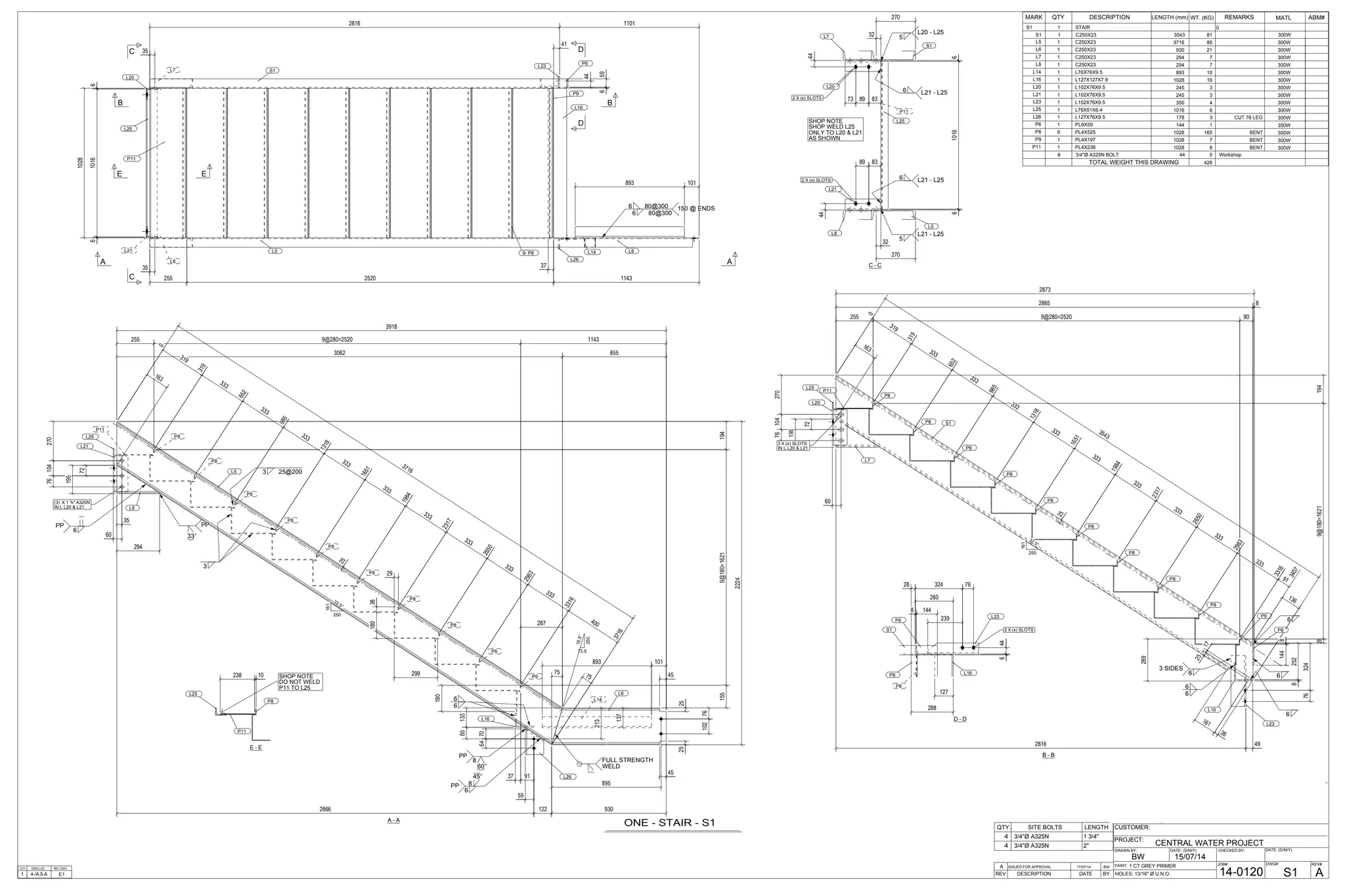
ONE - STAIR - S1 CUSTOMER:
DRAWN BY: DATE: (D/M/Y)
PROJECT:
DWG#
CARBON STEEL BUILDINGS
BW 15/07/14
CENTRAL WATER PROJECT
S1
CHECKED BY:DATE: (D/M/Y)
REV#
AHOLES: 13/16" Ø U.N.O.
PAINT: 1 CT GREY PRIMER JOB#
14-0120
ALL STEEL CRAFT
PHONE: (780) 478-6668 FAX: (780) 478-6677
FABRICATORS LTD.
MARK QTY DESCRIPTION LENGTH (mm) WT. (KG) REMARKS MATL ABM#
S1 1
S1 1 C250X23 3543 81 300W
0STAIR
L5 1 C250X23 3716 85 300W
L6 1 C250X23 930 21 300W
L7 1 C250X23 294 7 300W
L8 1 C250X23 294 7 300W
L14 1 L76X76X9.5 893 10 300W
L16 1 L127X127X7.9 1028 16 300W
L20 1 L102X76X9.5 245 3 300W
L21 1 L102X76X9.5 245 3 300W
L23 1 L102X76X9.5 350 4 300W
L25 1 L76X51X6.4 1016 6 300W
L26 1 L127X76X9.5 178 3 CUT 76 LEG 300W
P6 1 PL8X59 144 1 350W
P8 9 PL4X525 1028 165 BENT 300W
P9 1 PL4X197 1028 7 BENT 300W
P11 1 PL4X238 1028 8 BENT 300W
6 3/4"Ø A325N BOLT 44 0 Workshop
TOTAL WEIGHT THIS DRAWING 428
72
60
195
76104270
L25
6
PP
3
3 25@200
(3) X 1 34/ " A325N
IN L L20 & L21
L26
L21
L8
P11
P9
L16
L14
L6
L5
P8
P8
P8
P8
P8
P8
P8
P8
P8
A - A
213
73.5
16.5°
250
75
163
893
930
895
2224
2525
10276
137
1559@180=1621194
319
319
0
333
652
333
985
333
1318
333
1651
333
1984
333
2317
333
2650
333
2983
333
3316
400
3716
3716
287
3062 855
255 9@280=2520 1143
3918
FULL STRENGTH
WELD
6
6
33°
PP
8
45°
6
PP
8
60°
PP
161
32.5°
250
6470
80133
37 91
25
294
299
29
18038
180
75
35
59
2866 122
45
45
101
610166
1028
E E
L25
C
C
B B
A A
L5 L6L14
L16
L23
P6
P9
P11
L8
L21
L7
L20
L26
S1
9- P8
44
659
35
35 37
255 2520 1143
893 101
41
2816 1101
D
D
6 80@300
6 80@300
150 @ ENDS
76
8252
324
136
3543
91
3407
289@180=1621194
6
6
L7
P11
P9
P6
L23
L16
P8
P8
P8
P8
P8
P8
P8
P8
P8
B - B
25
17
289
195
72
76104270
1448
161
26
163
319
319
0
333
652
333
985
333
1318
333
1651
333
1984
333
2317
333
2650
333
2983
333
3316
255 9@280=2520 90
2816 49
2873
2865 8
60
66
3 SIDES
6
6
L25
3 X (x) SLOTS
IN L L20 & L21
S1
L20
161
32.5°
250
25
44
44
610166
89 83
32
73 89 83
32
270
270
5
L21 - L25
5
L20 - L25
6 L21 - L25
6 L21 - L25
SHOP NOTE
SHOP WELD L25
ONLY TO L20 & L21
AS SHOWN
2 X (x) SLOTS
2 X (x) SLOTS
L25
S1
L20
L7
L21
L8
P11
L5
C - C
127
239
644
8 144
260
28 324 76
288
2 X (x) SLOTSS1
P9
P6
L23
L16
P8
D - D
238 10 SHOP NOTE
DO NOT WELD
P11 TO L25
L25
P11
P8
E - E
CUSTOMER:
DRAWN BY: DATE: (D/M/Y)
PROJECT:
DWG#
CPI Construction Ltd.
BW 20/12/13
EDCON Power Tongs
E1
CHECKED BY:DATE: (D/M/Y)
IC3D
REV#
0HOLES: 13/16" Ø U.N.O.
PAINT: CISC/CPMA 1-73A GREY PRIMER JOB#
1166
ALL STEEL CRAFT
PHONE: (780) 478-6668 FAX: (780) 478-6677
FABRICATORS LTD.
0 ISSUED FOR CONSTRUCTION 13/03/14 BW
A ISSUED FOR APPROVAL 03/01/14 BW
REV DESCRIPTION DATE BY
ELEVATION VIEW
SEE DWG E5
ROOF PLAN
SEE DWG E3
2ND FLOOR PLAN
SEE DWG E2
EDCON Power Tongs - ISOMETRIC VIEW
(LOOKING NORTH-EAST)
STAIR #1
SEE DWG E8
ELEVATION VIEW
SEE DWG E5
ANCHOR BOLT PLAN
SEE DWG EM1
MISC FRAMING BELOW
SEE DWG E9
RTU FRAMES
SEE DWG E11
ROOF HATCH LADDER
SEE DWG E9
STAIR #2 & HANDRAIL
SEE DWG E7
STAIR #3 & HANDRAIL
SEE DWG E10
ELEVATION VIEW
SEE DWG E4
TRANSFORMER ENCLOSURE
SEE DWG E12
STAIR #3 & HANDRAIL
SEE DWG E10
STAIR #2 & HANDRAIL
SEE DWG E7
ELEVATION VIEW
SEE DWG E4
BOLLARDS
SEE DWG E12
RTU FRAMES
SEE DWG E11
MISC FRAMING BELOW
SEE DWG E9 2ND FLOOR PLAN
SEE DWG E2
EDCON Power Tongs - ISOMETRIC VIEW
ELEVATION VIEW
SEE DWG E6
(LOOKING SOUTH-WEST)
ROOF HATCH LADDER
SEE DWG E9
STAIR #1
SEE DWG E8
ROOF PLAN
SEE DWG E3
SHOP NOTE:
GRIND SMOOTH ALL
EXPOSED WELDS & EDGES
QTY. SITE BOLTS LENGTH
5/8"Ø WEDGE_ANC BOLT2 4"
3/4"Ø A325N BOLT2 2 1/2"
3/4"Ø A325N BOLT2 2"
GRID LOC REF DWGQTY
2.2/K-H E71
0 ISSUED TO SHOP 22/01/14 BW
A ISSUED FOR APPROVAL 03/01/14 BW
REV DESCRIPTION DATE BY
ONE - STAIR - S1 CUSTOMER:
DRAWN BY: DATE: (D/M/Y)
PROJECT:
DWG#
CPI Construction Ltd.
BW 02/01/14
EDCON Power Tongs
S1
CHECKED BY:DATE: (D/M/Y)
IC3D
REV#
0HOLES: 13/16" Ø U.N.O.
PAINT: CISC/CPMA 1-73A PRIMER JOB#-PO#
1166-1806
ALL STEEL CRAFT
PHONE: (780) 478-6668 FAX: (780) 478-6677
FABRICATORS LTD.
MARK QTY DESCRIPTION LENGTH WEIGHT REMARKS MATL ABM#
S1 1
S1 1 C310X31 11'-5 1/4" 238 300W
0STAIR
L79 1 C310X31 4'-0 3/16" 84 300W
L84 1 C310X31 11'-7 3/16" 242 300W
L86 20 L38X38X6.4 8" 31 300W
L88 1 L102X76X9.5 6 1/2" 5 300W
L89 1 L102X76X9.5 6 1/2" 5 300W
L92 2 L102X76X9.5 4" 6 300W
L94 1 L102X76X9.5 11 1/4" 8 300W
L97 1 L102X76X13 5 1/4" 5 300W
L118 1 L127X76X6.4 3'-2" 21 300W Z16
L140 1 L127X127X6.4 2'-10 15/16" 24 300W Z16
P80 2 PL1/4"X2 5/8" 5 9/16" 2 350W
P84 1 PL1/4"X2 5/8" 2 5/8" 0 350W
P85 1 PL1/4"X1 3/4" 2 5/8" 0 350W
P120 10 SHT8GAX21 3/16" 3'-2" 290 8GA SHEET 300W
P126 1 SHT8GAX7 1/16" 3'-2" 10 8GA SHEET 300W
6 STUD 1/2" DIA 8" 3
TOTAL WEIGHT THIS DRAWING 973
3'-10716/
2'-101516/
4'-0316/
13'-612/
3 x STUD_12/ X8
14/
3 SIDES
B/S
A - A
51116/
4316/218/
5916/
6'-5
11'-5
1 4/
3
1 16/
5
11 16/
5
1116/
0
1'-0
15 16/
1'-6
58/
1'-0
15 16/
11'-3
116/
2
3 16/
11'-5
14/
14/ 9'-6116/
3 10@11=9'-2 1516/
11@61316/=6'-32
12/6'-412/
L118
316/
14/
3 SIDES
DET. A
316/ 3"@12
316/ 3"@12
FULL
STRENGTH
P126
SHT8GA
10- P120 (N/S)
10- L86 (N/S)
316/ 2"@9
316/ 2
316/ 2
316/ 2
316/ 2
RET @ ENDS
S1
L140
P80
L92
L97
L79
1
61316/
218/
2
1
38/ 1158/
634/
2
1516/
4
316/
11 16/
6
13 16/
218/
218/ 8
2
716/
3
7 16/
3716/
7
3916/178/
2716/
3316/ 11'-1
1 2/
RD
1
11
7 16/
1'-0
15 16/
2'-7
916/
1'-0
15 16/
3'-8
12/
1'-0
15 16/
4'-9
716/
1'-0
15 16/
5'-10
38/
1'-0
15 16/
6'-11
516/
1'-0
15 16/
8'-0
14/
1'-0
15 16/
9'-1
316/
1'-0
15 16/
10'-2
18/
1
4
61116/
3
312/ 1'-2 1'-2
3716/
15.88°
12
134/
3716/
658/
7
L89
L88
258/516/516/258/
2116/2116/
3'-2
B B
A A
P126
SHT8GA
258/ 14/
258/516/
178/218/
3 9'-2 1516/ 4'-0316/
3'-10716/ 134/
51116/ 2'-101516/
3'-2
7
4
3 9'-2 4
118/ 3'-1058/ 134/
9'-618/ 4'-038/
14/
L118 B/E
316/
P84
316/
P86
L88
L89
1 x 1116/ "Ø
L92
L92
L140
L94
D
D
C C
P84
P85
L118
10- L86
10- L86
10- P120
SHT8GA
258/ 14/
5
11 16/
5
1116/
0
1'-0
15 16/
1'-6
58/
1'-0
15 16/
11'-3
116/
4
1 8/
11'-7
316/
11@61316/=6'-32
9'-9
3 10@11=9'-2 4
12/6'-414/14/
3
7 16/
10
5 16/
2
3 8/
11'-7
3 16/
3
1 16/
11
7 16/
14/
3 SIDES
10- L86 (F/S)
SHOP NOTE:
SEE SECT A-A FOR
TYP DETAILS & DIM`S
NOT SHOWN
P84
P85
L118
L92
P80
L94
L84
B - B
7716/
31.81°
12
212/
9'-618/ 258/
1'-0
15 16/
2'-7
916/
1'-0
15 16/
3'-8
12/
1'-0
15 16/
4'-9
716/
1'-0
15 16/
5'-10
38/
1'-0
15 16/
6'-11
516/
1'-0
15 16/
8'-0
14/
1'-0
15 16/
9'-1
316/
1'-0
15 16/
10'-2
18/
1
912/
118/
7
314/
134/
612/14/
6'-5
4
3 16/
2
3 4/
214/
5
SHOP NOTE:
NO PAINT INTERIOR
FACES (TYP)
316/ 2"@9
P120
L118
C - C
51'-21'-2
11116/
2
3
214/
912/ 212/
7
3'-2
3 x STUD_12/ X8
L84
L79
L97
L94
P84
P85
L118
P120
S1
2 X (1316/ "x1") SLOTS
D - D
11116/3916/
2716/
512/
MAINTAIN
L97
L79
S1
14/
38/
45°
G
PP
14/
14/
DETAIL A
SHOP NOTE:
PROVIDE 38/ DIA VENT HOLES
IN ENDS OF HSS AS REQ'D
QTY. SITE BOLTS LENGTH
3/4"Ø A325N BOLT4 2 1/4"
GRID LOC REF DWGQTY
2.1/K E21
0 ISSUED TO SHOP 22/01/14 BW
A ISSUED FOR APPROVAL 03/01/14 BW
REV DESCRIPTION DATE BY
ONE - COLUMN FRAME - F2 CUSTOMER:
DRAWN BY: DATE: (D/M/Y)
PROJECT:
DWG#
CPI Construction Ltd.
BW 23/12/13
EDCON Power Tongs
F2
CHECKED BY:DATE: (D/M/Y)
IC3D
REV#
0HOLES: 13/16" Ø U.N.O.
PAINT: CISC/CPMA 1-73A PRIMER JOB#-PO#
1166-1806
ALL STEEL CRAFT
PHONE: (780) 478-6668 FAX: (780) 478-6677
FABRICATORS LTD.
MARK QTY DESCRIPTION LENGTH WEIGHT REMARKS MATL ABM#
F2 1
F2 1 HSS127X127X8.0 24'-8 7/8" 472 CS-1E 350W
0COLUMN FRAME
Z2
L9 1 L127X127X6.4 7'-6 1/4" 62 300W Z16
L27 1 L127X127X6.4 9 1/4" 6 300W Z16
L103 1 L76X76X9.5 5" 3 300W
L130 1 HSS127X127X8.0 24'-7 3/4" 470 CS-1E 350W Z23
L138 1 L127X127X6.4 6'-3" 52 300W Z16
L159 1 L76X76X6.4 5" 2 300W Z33
L228 1 W360X33 7'-7" 168 350W Z15
L230 1 W360X33 7'-7 3/16" 168 BEV CUT 2E 350W Z15
L239 1 HSS127X127X6.4 13'-6 5/16" 211 BEV CUT 2E 350W Z18
L240 1 HSS127X127X6.4 6'-8 1/16" 104 BEV CUT 2E 350W Z14
L245 1 HSS127X127X6.4 13'-1 7/16" 205 BEV CUT 2E 350W Z14
L254 1 HSS127X127X6.4 6'-7 7/16" 103 BEV CUT 2E 350W Z17
L255 1 HSS127X127X6.4 6'-1 7/8" 96 BEV CUT 2E 350W Z14
L256 1 HSS127X127X6.4 6'-6 13/16" 102 BEV CUT 2E 350W Z17
L259 4 HSS127X127X6.4 8 1/8" 42 350W Z30
L272 1 C310X31 8'-3" 172 300W Z13
L280 2 L152X102X13 7" 19 300W
L341 3 L102X76X9.5 7" 15 300W
L343 4 L102X76X9.5 9" 25 300W
L344 4 L102X76X9.5 9" 25 CUT 3" LEG 300W
L346 2 L102X76X9.5 1'-0" 17 300W
P4 2 PL3/4"X14" 1'-2" 83 350W
P23 1 PL3/8"X3 1/2" 6 1/4" 2 350W
P26 1 PL3/8"X3 1/2" 6 3/16" 2 350W
P37 2 PL3/8"X4 1/2" 4 1/2" 4 350W
P69 1 PL1/2"X9 3/4" 1'-5 5/16" 17 350W
P115 1 PL1/4"X4 3/4" 5" 2 350W
P134 4 PL3/8"X3 1/4" 5" 7 350W
P135 1 PL3/8"X4 1/2" 4 3/4" 2 350W
P136 1 PL3/8"X4 1/2" 5" 2 350W
P150 2 PL3/8"X4" 9 9/16" 6 350W
P158 4 PL3/8"X6" 6" 15 350W
P159 2 PL3/8"X6" 6 1/2" 8 350W
P166 1 PL1/2"X4" 1'-4 9/16" 9 350W
P172 2 PL3/8"X4 1/2" 4 5/8" 4 350W
13 STUD 1/2" DIA 8" 7
TOTAL WEIGHT THIS DRAWING 2714
34/
34/
634/
2316/
1'-21516/
412/
2
1 4/
2
1 4/
112/
112/
8'-3
1 16/
1
16
/
6'-10
11 16/6'-9
13 16/
3 1
8/
1 3
8/
12
18/
2
9'-7716/
316/
7'-7316/
316/
812/
24'-878/ 118/
5
14/914/
412/ 14/
38/818/
812/
38/818/
24'-238/
23'-712/ 678/
6'-8
15 16/
RD
7 8/
7 8/
6
11 16/
71316/
12
812/
12
1 3
4/
1 3
4/
6 11
16
/
6'-8 1
16
/
13'-1
7 16/
8'-0
6
6
0
14/
60°
PP
A A
B B
P4
P4
516/
6'-7
7 16/
6'-8 13
16
/
RD
13'-6 5
16
/
38/38/
3
5 16/
1 2/
912/ 11'-218/ 12'-458/ 23'-6116/
38/
61316/
714/ 714/
9'-1012/
22'-234/
24'-818/
24'-1014/ (HSS127X127X8.0 x 24'-8 78/ )
11'-338/
11'-938/
12'-378/
24'-114/
678/
24'-818/
L346
L344
L344
L344
L346 L344
14/
14/
BUILD UP
AS REQ'D
(316/ )
PP, B/S
14/
3 SIDES
(316/ )
PP, B/S
TYP U/NOTED
L280
6 x STUD_12/ X8
P23
G
G
G
G
F
F
E
E
D
D
C
C
L130
P115P37
P172
P69
P37
L159
P172
P136
P134 (B/S)
P134 (B/S)
6 x STUD_12/ X8
F2
L228
L9
L239
L254
L259
L27
L103
P26
L245
L240
L230
L259
L259
L256
L255
L272
L138
L259
12/
6'-1 7
8/
2
3'-8
9'-914/
1'-0
P150
L341
L343
L341
14/
14/
3 SIDES
P166
P158
P159
CUT SQ
316/
316/
14/
14/
14/
916/ (516/ )
33°
PP
38/ (14/ )
57°
PP
14/
B/S
716/ (516/ )
55°
PP
916/ (516/ )
35°
PP
916/ (516/ )
35°
PP
516/
(316/ )
PP,
B/S
6'-114/
6'-114/
RD
EL99'-8 EL105'-10
2
86'-38
412/ 14/
234/
51316/
2'-7
12'-414/
34/
1
EL112'-1
58/
58/
21
8/
3 5
16
/
612/
1
2/
1
2
13 16/
6
6
612/
12/
7'-614/34/
14/
14/
12'-212/
1112/8'-0
113
16
/
1
2
3 4/
6'-6
13 16/
6'-9 15
16
/
6'-7 3
4/
1 1
8/
1 1
8/
2 7
8/
1
12/
58/
2516/51316/
234/
2'-612/
24'-914/
12/
EL124'-6
14/
(316/ )
PP,
B/S
P150
L343
L341
P158
14/
14/
14/
916/ (516/ )
33°
PP
14/
PP, B/S
38/ (14/ )
57°
PP
516/
23'-134/ 24'-41116/
L280
24'-878/
34/
55
L280
L280
14/
14/
L9 P135L103
P26
P23
L272P4
L228
L230
L130
B - B
33
33333
212/212/
11'-378/ 23'-734/
6'-114/RD 11'-078/ 3 23'-312/
55
212/212/
55
12'-212/
22
134/
3
134/
134/
24'-734/ 38/
12'-414/
316/
12/ RET &
TOP (TYP)
14/3 SIDES
L346
L344 (B/S)L344 (B/S)
L346
12'-414/
12'-414/
0
24'-10
34/
55
14/
14/
P134
L259
P134
L27
P115
L272
L259
P134
P172
L9
L230
L254P4
A - A
12'-5
24'-914/
24'-878/
412/412/
91316/
12
3
3
1'-012/ 2516/
8716/178/
L343
L341
L343
L341
L341
L343
L343
2 x (1316/ "x1") SLOTS
P150
14/3 SIDES
14/3 SIDES
F2
L259
P172 L159
P136
P134
P37
P69
11'-714/ 12'-734/
212/
212/
212/334/
234/
12/5716/
6'-114/RD 10'-714/ 4 8 3 3 612/ 4
12'-012/ 212/
114/
134/
22
23'-014/ 4 8 3 3
24'-014/
55
212/
212/
212/334/
24'-512/ 212/
114/
14/
38/
22
5 5
557'-255
8'-0
4 x 1 916/ "Ø
4 x 1 916/ "Ø
P69
P4
P4
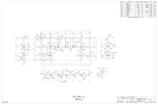
F2 North
L130
C - C
1'-2
4'-912/
1'-2
5'-1112/
312/
6'-3
1012/6'-31012/
134/
134/
438/438/
112/8'-0112/
578/46'-7516/4578/
SHOP NOTE:
NO PAINT INT
ANGLE FACES
316/
316/
316/ 3"@12
L130
L240
L245
L255
L272
F2
L138
D - D
112/
112/
RD
1'-2
1'-312/
1'-2
2'-512/
1'-2
3'-712/
58/L341
12/L343
1112/
814/
212/
SHOP NOTE:
NO PAINT INT
ANGLE FACES
316/
316/
316/
P37
316/ 3"@12
316/ 3"@12
14/
14/
PP, BUILD UP
ON HSS RAD
14/
14/
L130
L228
L9
L259
P134
L27
P115
L103
P26
P23
P134
F2
E - E
2
458/458/
912/
14/914/
14/ 434/
3
516/CTRD
21
2/
2
12/
112/
538/
278/ 11316/
2516/
4716/
1012/
1012/
RD1'-2
2'-012/
1'-2
3'-212/
1'-2
4'-412/
1'-2
5'-612/
1'-2
6'-812/
934/
7'-614/
7'-614/314/
2516/4716/
12
12
12
6916/
21
2/
316/
2
716/
134/
3
L344
L344
L346
L343L341
L343
L341
134/CUT
LEG
58/L341
12/L343
1112/12/
11
814/
814/
L344
PP
316/
P134
L259
P37
P134
F2
P136
L159
14/
45°
PP
316/
14/
45°
PP
14/
PP, 3 SIDES
L230
L130
L280
P135
F - F
2 5 2
14/
14/
3 3
134/CUT
LEG
516/CTRD
12/
212/
2
2 2
L343
L341
L346
P158
L344
212/334/
7NOPAINT
51316/
14/ 458/ 18/
11
812/
38/818/
316/
316/
SHOP NOTE
MAINTAIN FOR
FIELD WELDING
P150
NO PAINT
SEAL
316/
3 SIDES
F2
L259
P172
G - G
SHOP NOTE:
1) FULLY WELD ALL PIPE JOINTS
2) GRIND SMOOTH ALL WELDS & EDGES
QTY. SITE BOLTS LENGTH
GRID LOC REF DWGQTY
2.1-2.2/K-H E71
0 ISSUED TO SHOP 22/01/14 BW
A ISSUED FOR APPROVAL 03/01/14 BW
REV DESCRIPTION DATE BY
ONE - HANDRAIL - R1 CUSTOMER:
DRAWN BY: DATE: (D/M/Y)
PROJECT:
DWG#
CPI Construction Ltd.
BW 24/12/13
EDCON Power Tongs
R1
CHECKED BY:DATE: (D/M/Y)
IC3D
REV#
0HOLES: 13/16" Ø U.N.O.
PAINT: CISC/CPMA 1-73A PRIMER JOB#-PO#
1166-1806
ALL STEEL CRAFT
PHONE: (780) 478-6668 FAX: (780) 478-6677
FABRICATORS LTD.
MARK QTY DESCRIPTION LENGTH WEIGHT REMARKS MATL ABM#
R1 1
R1 1 PIPE1-1/4STD 11'-11 9/16" 26 A53
0HANDRAIL
L198 1 PIPE1-1/4STD 1'-11 5/16" 4 A53
L200 3 PIPE1-1/4STD 2'-9 3/4" 18 A53
L201 2 PIPE1-1/4STD 3'-6 5/16" 15 A53
L202 1 PIPE1-1/4STD 3'-3 3/4" 7 A53
L204 1 PIPE1-1/4STD 6 1/16" 1 A53
L211 1 PIPE1-1/4STD 3 15/16" 1 A53
L212 1 PIPE1-1/4STD 2 13/16" 1 A53
L216 27 ROD3/4" 2'-4 3/8" 93 300W
L217 1 ROD3/4" 2'-4 7/8" 4 300W
L282 1 PIPE1-1/4STD 4 13/16" 1 A53
TOTAL WEIGHT THIS DRAWING 170
8'-678/
1'-101516/1'-101516/2'-118/
2
21316/
10'-41316/
33
8/
2'-13
8/
1
2'-55
8/
2'-65
8/
318/
L217
L216
L216
L216
L198
L202
L201
L201
L200
L200
2'-738/
2'-6916/1316/
L212
L282
L211
L204
A
A
6'-358/
2'-11 3'-1 3'-1 1'-1
3'-5 3
16
/
3'-7 9
16
/
3'-7 9
16
/
4 4 8@358/ =2'-5 4 4 8@358/ =2'-5 4
11'-11 9
16
/
SHOP NOTE:
NO PAINT 2" AROUND
POST ENDS
L216
L216
L216
L216
L216
L216
L216
L216
L216
L216
L216
L216
L216
L216
L216
L216
L216
L216
L216
L216
L216
L200
L216
L216
L216
R1
12/4
7716/ 31.81°
12
1916/
3'-0
1
412/2'-578/1
2'-11516/
2'-978/
2 8@358/ =2'-5
2'-314/
2'-11516/
1'-738/8116/
778/2'-3716/
13
16
/
1'-3 5
16
/
41316/
6116/
R1
L212
L211
L282
L204
2'-738/
2'-6916/1316/
6116/
5316/
41316/
31516/
SHOP NOTE:
NO PAINT 2" AROUND
RAIL END
SHOP NOTE:
NO PAINT 2" AROUND
RAIL END
L204
L282
L217
A - A
QTY. SITE BOLTS LENGTH
GRID LOC REF DWGQTY
2.1-2.2/K-H E71
0 ISSUED TO SHOP 22/01/14 BW
A ISSUED FOR APPROVAL 03/01/14 BW
REV DESCRIPTION DATE BY
ONE - HANDRAIL - R2 CUSTOMER:
DRAWN BY: DATE: (D/M/Y)
PROJECT:
DWG#
CPI Construction Ltd.
BW 24/12/13
EDCON Power Tongs
R2
CHECKED BY:DATE: (D/M/Y)
IC3D
REV#
0HOLES: 13/16" Ø U.N.O.
PAINT: CISC/CPMA 1-73A PRIMER JOB#-PO#
1166-1806
ALL STEEL CRAFT
PHONE: (780) 478-6668 FAX: (780) 478-6677
FABRICATORS LTD.
MARK QTY DESCRIPTION LENGTH WEIGHT REMARKS MATL ABM#
R2 1
R2 1 PIPE1-1/4STD 11'-4 9/16" 24 A53
0HANDRAIL
L199 1 PIPE1-1/4STD 2 7/8" 1 90° SR ELBOW A53
L200 3 PIPE1-1/4STD 2'-9 3/4" 18 A53
L201 3 PIPE1-1/4STD 3'-6 5/16" 23 A53
L205 1 PIPE1-1/4STD 4 13/16" 1 A53
L206 1 PIPE1-1/4STD 2 1/16" 0 A53
L207 1 PIPE1-1/4STD 5 5/16" 1 A53
L216 27 ROD3/4" 2'-4 3/8" 93 300W
L219 1 ROD3/4" 2'-7 1/2" 4 300W
L276 1 PIPE1-1/4STD 2'-10 13/16" 6 A53
TOTAL WEIGHT THIS DRAWING 171
5'-111516/
8'-1034/
1'-101516/1'-101516/1'-101516/
1316/
3'-1
3'-1 3'-1 81516/
10'-01316/
3'-7
1 2/
11'-4
9 16/
SHOP NOTE:
1) FULLY WELD ALL PIPE JOINTS
2) GRIND SMOOTH ALL WELDS & EDGES
L216
L216
L216
L216
L216
L201
L201
L201
L276
2'-101316/
12/2'-978/716/
1
12/
5316/
3'-0
2'-6
58/
2'-5
58/
1
1316/
2'-1
38/
3
38/
4 4 8@358/ =2'-5 4 31516/ 8@358/ =2'-5
3'-8
1 2/
3'-7
1 2/
SHOP NOTE:
NO PAINT 2" AROUND
POST ENDS
L216
L216
L216
L216
L216
L216
L216
L216
L216
R2
L200
L200
L216
L216
L216
L216
L216
L216
L216
L216
L216
L216
L216
12
31.81°
7716/
4
2'-578/138/
1916/
2'-11516/
41316/ 8@358/ =2'-5
3716/2'-10
5516/ 358/
4716/ 358/
2'-9316/1316/
4116/ 414/ 41116/
5
L205
L206
L207
L199
A
A
L216
L216
L200
L219
41316/
31516/
258/
11316/
R2
L206
L205
L199
L207
218/ 212/
41316/
31516/
11316/
2'-10
2'-9316/1316/
SHOP NOTE:
NO PAINT 2" AROUND
ELBOW END
SHOP NOTE:
NO PAINT 2" AROUND
RAIL END
L219
L205
L206
L207
L199
R2
A - A
SHOP NOTE:
GRIND SMOOTH ALL
EXPOSED WELDS & EDGES
QTY. SITE BOLTS LENGTH
3/4"Ø A325N BOLT2 2 1/2"
3/4"Ø A325N BOLT2 2 1/4"
3/4"Ø A325N BOLT4 2"
GRID LOC REF DWGQTY
2.1-2.2/K-H E71
0 ISSUED TO SHOP 22/01/14 BW
A ISSUED FOR APPROVAL 03/01/14 BW
REV DESCRIPTION DATE BY
ONE - STAIR - S2 CUSTOMER:
DRAWN BY: DATE: (D/M/Y)
PROJECT:
DWG#
CPI Construction Ltd.
BW 02/01/14
EDCON Power Tongs
S2
CHECKED BY:DATE: (D/M/Y)
IC3D
REV#
0HOLES: 13/16" Ø U.N.O.
PAINT: CISC/CPMA 1-73A PRIMER JOB#-PO#
1166-1806
ALL STEEL CRAFT
PHONE: (780) 478-6668 FAX: (780) 478-6677
FABRICATORS LTD.
MARK QTY DESCRIPTION LENGTH WEIGHT REMARKS MATL ABM#
S2 1
S2 1 C310X31 11'-9 15/16" 246 300W
0STAIR
L26 1 L127X127X6.4 3'-2" 26 300W Z16
L80 1 C310X31 3'-7 1/4" 75 300W
L81 1 C310X31 12'-2 7/8" 255 300W
L86 20 L38X38X6.4 8" 31 300W
L88 1 L102X76X9.5 6 1/2" 5 300W
L89 1 L102X76X9.5 6 1/2" 5 300W
L93 1 L102X76X9.5 11 1/4" 8 300W
L94 1 L102X76X9.5 11 1/4" 8 300W
L96 1 L102X76X9.5 11 1/4" 8 300W
L98 1 L102X76X13 8 1/2" 8 300W
L118 1 L127X76X6.4 3'-2" 21 300W Z16
L139 1 L127X127X6.4 2'-11 15/16" 25 300W Z16
P81 2 PL1/4"X1 7/16" 2 5/8" 1 350W
P83 1 PL1/4"X2 5/8" 5 7/16" 1 350W
P85 2 PL1/4"X1 3/4" 2 5/8" 1 350W
P120 10 SHT8GAX21 3/16" 3'-2" 290 8GA SHEET 300W
P127 1 SHT8GAX9 9/16" 3'-2" 13 8GA SHEET 300W
9 STUD 1/2" DIA 8" 5
TOTAL WEIGHT THIS DRAWING 1030
6'-10
14/6'-912/14/
S2
L94
P83
L96
A - A
212/
52
9
16
/
11
8/
43
8/
51
2/
15
16
/
33
8/
15
16
/
31
16
/
115
16
/
212/912/
14/
1716/
134/14/
118/
1116/ 9'-5316/ 258/
11
8/
2
87
8/
313
16
/
31
4/
1'-0 15
16
/
6'-815
16
/
1'-0 15
16
/
7'-97
8/
1'-0 15
16
/
8'-1013
16
/
1'-0 15
16
/
9'-113
4/
1'-0 15
16
/
11'-011
16
/
95
16
/
11'-915
16
/
118/
6916/214/
5716/14/
111316/10@61316/=5'-8316/2
3 10@11=9'-2 4
P85
P81
L118
L26
P127
SHT8GA
10- P120 (N/S)
SHT8GA
10- L86 (N/S)
14/
3 SIDES
14/
3 SIDES
316/ 2"@9
316/ 2
316/ 2
316/ 2
316/ 2
RET @# ENDS
212/
61116/218/
2
1
1158/ 38/
61316/
218/
613
16
/
11
16
/
43
16
/
215
16
/
1
8 218/
334/
9'-9
9'-812/ 14/
1
19
16
/
51
2/
11'-9 15
16
/
31
4/
31
4/
0
1'-0 15
16
/
1'-43
16
/
1'-0 15
16
/
2'-51
8/
1'-0 15
16
/
3'-61
16
/
1'-0 15
16
/
4'-7
1'-0 15
16
/
5'-715
16
/
13'-612/
3'-1058/
4'-038/
4'-112/
B B
118/
1516/ 9'-5316/
1516/
3 9'-2
3 9'-2 4
3'-2
L81
P83
L139
L80
14/
L26 B/E
14/
L118 B/E
L94
L96
F FE E
D
D
C
C
A A
P81
P85
L118
L26
P127
SHT8GA
P81
P85
10- L86
10- P120
SHT8GA
10- L86
134/
218/178/
L89
L88
212/912/
52
9
16
/
11
8/
43
8/
51
2/
15
16
/
37
16
/
7
8/
31
8/ 115
16
/
14/
3 x STUD_12/ X8
L139
L93
L98
L80
L81
L88
L89
B - B
3'-2116/ 134/
312/
1'-2 1'-2 312/
7116/ 2'-111516/
214/ 3116/
1'-0 15
16
/
8'-79
16
/
1'-0 15
16
/
9'-81
2/
1'-0 15
16
/
10'-97
16
/
10 3
4/
11'-83
16
/
1
7'-3
13'-612/
10'-2716/ 3'-31316/
3 10@11=9'-2 91116/
3716/
741316/
111316/10@61316/=5'-8316/2
638/
10- L86 (F/S)
SHOP NOTE:
SEE SECT A-A FOR
TYP DETAILS & DIM`S
NOT SHOWN
38/
45°
14/
PP
14/
14/
14/
3 SIDES
B/S
316/ 3"@12
316/ 3"@12
14/
3 SIDES
1916/518/111316/
3
1
3316/
3716/
15.88°
12
3716/
37
16
/
12'-2 7
8/
31
4/
0
31
4/
1'-0 15
16
/
1'-015
16
/
1'-0 15
16
/
2'-17
8/
1'-0 15
16
/
3'-213
16
/
1'-0 15
16
/
4'-33
4/
1'-0 15
16
/
5'-411
16
/
1'-0 15
16
/
6'-55
8/
1'-0 15
16
/
7'-69
16
/
214/
7
212/ 912/
212/ 912/
11116/11116/
134/ 14/
134/ 14/
516/258/258/516/
51'-21'-2
3'-2
2 X (1316/ "x1") SLOTS
2 X (1316/ "x1") SLOTS
L81
P85
L118
P81
P85
L93
L94
P81
S2
P120
SHT8GA
C - C
3
111316/
51'-21'-2
14/ 5716/ 712/ 212/
11116/
3'-2516/
3 x STUD_12/ X8
2 X (1316/ "x1") SLOTS
L26
L81
L96P83
L98
P127
SHT8GA
P120
SHT8GA
S2
D - D
61116/218/
5
SHOP NOTE:
NO PAINT
INT FACES
316/ 2"@9
L118
P120
E - E
1
61116/218/
111316/
316/ 2"@9
SHOP NOTE:
NO PAINT
INT FACES
L26
P120
P127
F - F
QTY. SITE BOLTS LENGTH
3/4"Ø A325N BOLT6 2"
GRID LOC REF DWGQTY
5.2-6.1/J-H E81
0 ISSUED TO SHOP 22/01/14 BW
A ISSUED FOR APPROVAL 03/01/14 BW
REV DESCRIPTION DATE BY
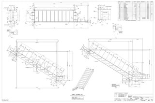
ONE - STAIR - S3 CUSTOMER:
DRAWN BY: DATE: (D/M/Y)
PROJECT:
DWG#
CPI Construction Ltd.
BW 02/01/14
EDCON Power Tongs
S3
CHECKED BY:DATE: (D/M/Y)
IC3D
REV#
0HOLES: 13/16" Ø U.N.O.
PAINT: CISC/CPMA 1-73A PRIMER JOB#-PO#
1166-1806
ALL STEEL CRAFT
PHONE: (780) 478-6668 FAX: (780) 478-6677
FABRICATORS LTD.
MARK QTY DESCRIPTION LENGTH WEIGHT REMARKS MATL ABM#
S3 1
S3 1 HSS203X203X8.0 9'-5 1/8" 301 350W
0STAIR
Z2
L1 1 HSS305X203X13 17'-11 3/4" 1124 350W
L30 1 HSS305X203X13 2'-2 5/16" 137 350W
L31 1 HSS305X203X13 1'-5 1/8" 89 350W
L32 1 HSS305X203X13 4'-8 7/8" 296 350W
P8 16 PL3/4"X11" 2'-0" 853 350W
P9 1 PL1/2"X4 1/16" 2'-0" 13 350W
P10 20 PL1/2"X6 1/2" 2'-0" 410 350W
P11 40 PL1/2"X5 11/16" 9" 146 350W
P12 1 PL3/4"X16" 1'-4" 54 350W
P13 1 PL3/4"X16" 2'-6" 102 350W
P20 1 PL3/4"X11 3/8" 2'-0" 58 350W
P21 1 PL3/4"X30" 4'-2" 316 350W
P36 1 PL3/8"X7 1/4" 11 5/8" 9 350W
P74 1 PL1/4"X30" 4'-2" 0 Neoprene
P77 19 PL1/4"X11" 2'-0" 0 Neoprene
P78 1 PL1/4"X8" 2'-0" 0 Neoprene
P87 1 PL1/2"X13 3/4" 1'-2" 27 350W
P88 2 PL1/2"X4 1/16" 9" 7 350W
P173 3 PL3/4"X11" 2'-0" 160 350W
TOTAL WEIGHT THIS DRAWING 4102
1'-10
9'-658/14/5
9
3 8/
9
38/
0
1'-0
15 16/
1'-10
516/
6
15 16/
6
1516/
0
1'-0
15 16/
1'-7
78/
1'-0
15 16/
2'-8
1316/
5916/16@61316/=9'-1116/
P9
P88 (B/S)
CC
A - A
EL109'-778/
1'-0
15 16/
13'-8
1116/
1'-0
15 16/
14'-9
58/
1'-0
15 16/
15'-10
916/
1'-0
15 16/
16'-11
12/ 10
7 16/
17'-9
1516/
RISER
PTS
1'-0
15 16/
11'-4
516/
1'-0
15 16/
12'-5
14/
1'-0
15 16/
13'-6
316/
1'-0
15 16/
14'-7
18/
1'-0
15 16/
15'-8
116/
1'-0
15 16/
16'-9
1'-0
15 16/
17'-9
1516/
TREAD
PTS
17'-21316/
1316/ 16@11=14'-8 2'-6
1'-312/ 1'-212/
1
13 16/
6
3 4/
17'-11
3 4/
6
1'-0
S3
L30
L31
DET. B
S3-A
P74
Neop Pad
P21
1'-0
15 16/
2'-11
14/
1'-0
15 16/
9'-4
1516/
1'-0
15 16/
10'-5
78/
1'-0
15 16/
11'-6
1316/
1'-0
15 16/
3'-9
34/
1'-0
15 16/
4'-10
1116/
1'-0
15 16/
5'-11
58/
1'-0
15 16/
7'-0
916/
1'-0
15 16/
8'-1
12/
1'-0
15 16/
9'-2
716/
1'-0
15 16/
10'-3
38/
1'-6
9 16/
11 14'-9516/
13'-4516/
3316/
16- P11 (B/S)
16- P10
16- P8
16- P77
Neop Pads
P13
L1
DET. A
S3-A
1'-0
15 16/
4'-0
14/
1'-0
15 16/
5'-1
316/
1'-0
15 16/
6'-2
18/
1'-0
15 16/
7'-3
116/
1'-0
15 16/
8'-4
1'-0
15 16/
12'-7
34/
EL99'-8
34/9'-518/34/
55
3
7 16/ 1'-0
15 16/
1'-0
1516/
0
TREAD
PTS
1'-0
15 16/
2'-1
78/
1'-0
15 16/
3'-2
78/
2
1 2/
2
12/
0
RISER
PTS
1'-0
15 16/
1'-3
716/
1'-0
15 16/
2'-4
38/
1'-0
15 16/
3'-5
516/
12
31.81°
7716/
11'-91516/1'-0116/
9'-658/
7'-101316/
4'-8
7 8/
3@11=2'-9
9'-518/
2'-3516/
P10
DET. E
S3-A
DET. D
S3-A
P173
P173
P173
P11 (B/S)
P11 (B/S)
P11 (B/S)
P11 (B/S)
P20
P78
Neop Pad
L1
S3 P12
B - B
EL99'-8
34/
EL112'-6
4@61316/=2'-3516/
3716/
15.88°
12
3716/
2'-2516/38/ 1'-518/
1'-912/ 2'-412/
34/
3- P77
Neop Pads
P10
P74
Neop Pad
P10
DET. C
S3-A
1138/
2
1
9 16/
6
7 8/
111316/
34/
P10
12/ 314/ 10716/
3316/
1'-01'-0
66
11 14'-9516/ 6
1'-10 13'-4516/ 1'-0
14/
14/
14/
4 x 1516/ "Ø 4 x 1516/ "Ø
P12
S3 North
P9
P88
P88
P13
L1
C - C
STAIR S3
1'-01'-0
1316/
88
A A
STAIR S3 PLAN VIEW
1'-0
8
17'-21316/
2'-6
1'-912/2'-412/
1'-212/
L30
L32
S3
B
B
WORK WITH DWG S3-A
6
14'-8
SHOP OR FIELD INSTALL NEOPRENE
PADS WITH REQ'D ADHESIVE.
INSTALL PRECAST TREADS AT SAME
TIME AS PADS.
1- P74
Neoprene Pad
1- P78
Neoprene Pad
16- P77
Neoprene Pads
P87
L31
2 6
2
1'-312/
3- P77
Neoprene Pads
1'-0
24
8
7'-1058/
4'-22'-9111316/
WORK WITH DWG S3
CUSTOMER:
DRAWN BY: DATE: (D/M/Y)
PROJECT:
DWG#
CPI Construction Ltd.
BW 03/01/14
EDCON Power Tongs
S3-A
CHECKED BY:DATE: (D/M/Y)
REV#
0HOLES: 13/16" Ø U.N.O.
PAINT: CISC/CPMA 1-73A GREY PRIMER JOB#-PO#
1166-1806
ALL STEEL CRAFT
PHONE: (780) 478-6668 FAX: (780) 478-6677
FABRICATORS LTD.
0 ISSUED TO SHOP 22/01/14 BW
A ISSUED FOR APPROVAL 03/01/14 BW
REV DESCRIPTION DATE BY
5916/61316/61316/
34/4116/34/
A3
A3
SHOP NOTE:
PL CONTACT POINTS
SEE SECT A-A
SHOP NOTE:
NEOPRENE PADS NOT
SHOWN FOR CLARITY
P11
P8
P9
P10
P13
P11
P8
P8
P10
P88
DETAIL A
DWG S3
2 6
9
3 8/
1'-0
15 16/
1'-0
15 16/
RISER
PTS
1512/
612/
938/
1316/ 11 11
6
15 16/
1'-0
15 16/
1'-0
15 16/
TREAD
PTS
1111
10716/314/12/
A2
A2
A1A1
814/
P8NOTCH
11 12/
44
2'-0
4884
938/ 158/
2 6 3
8
4 x 1116/ "Ø
P11
P11
P10
P8 & P173
P10
L1
A1 - A1
61316/
512/1778/814/
P10 NOTCH
778/
8
34/612/516/
14/ 14/
14/14/
P11
P11
P8
P10
P8
L1
A2 - A2
18/
8
12/
G
PP (TYP)
P11 P11
P8
L1
A3 - A3
938/ 218/
1'-312/
612/
61316/
L1
SHOP NOTE:
NEOPRENE PADS NOT
SHOWN FOR CLARITY
14/
L30 & L31
TO L1
12/ (14/ )
32°
PP
38/ (14/ )
58°
PP
(316/ )
PP, B/S
L1 TO S3
14/
B/S
P11
P11
L30
L31
P21
S3
P10
P8
DETAIL B
DWG S3
2 6
1'-0
15 16/
34/61316/61316/
1'-0
15 16/
TREAD
PTS
1'-0
15 16/
2
1 2/
RISER
PTS
2
NOTCH (P21)
X 814/
112/
2'-412/ 11
D1D1
SHOP NOTE:
PL CONTACT POINTS
SEE SECT B-BSHOP NOTE:
SEE DET. A FOR
TYP WELDS & DETAILS
P173
P173
L32
L30
P21
P10
P10
DETAIL D
DWG S3
2
2'-412/ 12/
1'-212/1'-312/
814/
P21NOTCH
44
1'-01'-0
S3
P10
P11
P11
L31
L32
L30
P21
L1
D1 - D1
38/ 1'-518/
1'-912/
1158/34/
14/
SHOP NOTE:
NEOPRENE PADS NOT
SHOWN FOR CLARITY
SHOP NOTE:
SEE DET.B FOR
F/S WELDS TO L1
(316/ )
G
PP, N/S
ONLY
(516/ )
PP, B/S
14/
14/
3 SIDES 14/
(516/ )
PP, B/S
14/
45°
PP
S3
L30
P21
L31
L1
DETAIL C
DWG S3
2 4
55234/
61316/
11 1138/ 716/
12/
11516/
SHOP NOTE:
SEE DET. A FOR
TYP WELDS & DETAILS
E2E2
E1
E1
P11
P11
P20
P11
P11
P173
L32
P87
P10
P10
DETAIL E
DWG S3
552
534/ 534/
1'-0 1'-0
P20
P87
L32
E1 - E1
534/534/
88
2 4
1138/ 716/
4 x 1116/ "Ø
P10
P20
L32
P87
E2 - E2
PROJECT:
DRAWN BY: DATE: (D/M/Y)
TITLE:
DWG#
GOVAN BROWN
BW 29/05/14
RBC MAPLE EDMONTON
E1
CHECKED BY:DATE: (D/M/Y)
REV#
0HOLES: 13/16" Ø U.N.O.
PAINT: 1 CT GREY PRIMER JOB#
1233
ALL STEEL CRAFT
PHONE: (780) 478-6668 FAX: (780) 478-6677
FABRICATORS LTD.
CUSTOMER:
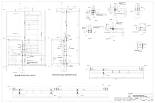
PARTITION SUPPORT FRAMING
0 ISSUED FOR CONSTRUCTION 23/06/14 BW
B ISSUED FOR APPROVAL 09/06/14 BW
A PRELIM- ISSUED FOR INFORMATION 29/05/14 BW
REV DESCRIPTION DATE BY
DET. A9
8
7
F
9
8
7
F
F - F
DETAIL A
DETAIL B
B - B
C - C
D - D
G - G
A - A
DETAIL K
1'-6 1'-6
3'-0
OPP/ HANDG
G
F
F
DET. B
COORDINATE
POCKET BELOW
(BY OTHERS)
PARTITION STEEL SUPPORTR PLAN
B1W8X21
16'-10
33'-014/
B1W8X21
KB
B6 W8X21
B6 W8X21
B6 W8X21
KB
KB
B5W8X21
KB
1114/14'-6912/
16'-214/
1114/
6'-834/
7'-8
1'-10
1034/1034/
KB
A A
OPP/ HAND
DET. A
DET. A
DET. B
KB
C1 C3X5
KB
C2 C3X5
C4 C3X5
C3 C3X5
B4W8X21
B2 W8X21 B3 W8X21
1'-412/
1'-534/
114/
EXT. WALL
C3 C3X5
3'-0
1134/
5'-914/9'-49'-49'-4
178/633'-914/
534/
7'-8
FIELDVERIFY
24'-0
TACKLENGTHREF.
2'-214/
16'-234/FIELDMEASURED1'-912/
BEAM & TRACK HOLE LAYOUT
COORDINATE BEAM & TRACK
LOCATION W/ MODERNFOLD
DWG'S
EXIST CONC COL
EXIST CONC COL
EXIST CONC COL
EXT. WALL
BEAM BOTT FLG (TYP)
61'-04
2'-014/
1'-834/6
8'-01'-62'-1
5'-914/9'-534/
615'-3
212/
1'-6
3'-0
212/
TYP
7'-35
10
6 6 6
66
B6 W8X21
B6 W8X21
B6 W8X21
B1W8X21
B1W8X21
B3 W8X21
B2W8X21
POCKET BELOW
(BY OTHERS)
1'-01'-01'-11'-03'-03'-03'-01'-71'-01'-61'-66
3'-114/
2'-414/734/
51'-034/
1'-534/
15'-10
B5W8X21B4W8X21
15'-3
9'-534/
4
5'-914/
DET. K
C1 C3X5
B1 W8X21 B2 W8X21
C4 C3X5
8- 34/ DIA X 10 HAS-E ROD HILTI_HIT150
(SHORTEN AS REQ'D)
(1 34/ "x1316/ ") SLOTS IN PL
C
C
B B
PL12/ "X11
2
32
4 4
55
W8X21
C3 C3X5
KB C3X5
P1 - WASHER
PL38/ "X2 X 2
@ EA ANCHOR
32
4 4
2
W8X21 6- 34/ DIA X 10 HAS-E ROD HILTI_HIT150
(SHORTEN AS REQ'D)
(1 34/ "x1316/ ") SLOTS IN PL
PL12/ "X9
P1 - WASHER
PL38/ "X2 X 2
@ EA ANCHOR
D D
112/ 112/
4
1134/1'-014/
2'-0
FIELDMEASURED
W8X21 4 x BOLT 34/ "DIA A325 214/
KB C3X5
C3 C3X5
P1 PL WASH
CUT & CHISEL ANCHOR
ENDS 45 DEGREES
AS REQ'D
EXIST SUSPENDED
CIELING
6
MIN
4MINEMBED
2 2 4
EXIST FLOOR SLAB 3
234/ 114/
5
KB PL38/ "X3
PL38/ "X1 12/
5
4
2
C3 C3X5
2'-0
1'-014/
KB C3X5
C1 C3X5
P18
W8X21
4 x BOLT 34/ "DIA A325 214/
EXIST FLOOR SLAB
CUT & CHISEL ANCHOR
ENDS 45 DEGREES
AS REQ'D
EXIST SUSPENDED
CIELING
6
MIN
4MINEMBED
4 2 2
P1 PL38/ "X2
1134/
4
33'-914/
9'-4
C3 C3X5
9'-4
4
5'-914/
C2 C3X5
B1 W8X21 B3 W8X21
DET. K
DET. K
9'-4
P16
C3 C3X5
B5 W8X21B4 W8X21
DET. K
3212/
438/438/
1'-6
2 x BOLT 34/ "DIA A325 134/ PL 3.8 (FS)
B6 W8X21
B3 W8X21B2 W8X21
112/2414/2112/
3
W8X21W8X21
8 x BOLT 34/ "DIA A325 314/
*PRETENSIONED*
2- PL1"X6 X 1'-2 14/
QTY. SITE BOLTS LENGTH
0 ISSUED TO SHOP 23/06/14 BW
A ISSUED FOR APPROVAL 09/06/14 BW
REV DESCRIPTION DATE BY
ONE - BEAM - B2
CUSTOMER:
DRAWN BY: DATE: (D/M/Y)
PROJECT:
DWG#
GOVAN BROWN
BW 09/06/14
RBC MAPLE EDMONTON
B2
CHECKED BY:DATE: (D/M/Y)
REV#
0HOLES: 13/16" Ø U.N.O.
PAINT: 1 CT GREY PRIMER JOB#
1233
ALL STEEL CRAFT
PHONE: (780) 478-6668 FAX: (780) 478-6677
FABRICATORS LTD.
MARK QTY DESCRIPTION LENGTH WEIGHT REMARKS MATL ABM#
B2 1
B2 1 W8X21 9'-4 3/4" 196 350W
0BEAM
P11 3 PL3/8"X5 3/4" 7 7/16" 12 350W
P14 1 PL1"X6" 1'-2 1/4" 24 350W
TOTAL WEIGHT THIS DRAWING 232
GRID LOC T.O.S. ELEVATIONREF DWGQTY
-10"E11
12/
12/
12/12/
9'-534/ (W8X21 x 9'-4 34/ )
38/
45°
GTSM
516/
516/ B2
P14
3- P11 (N/S)
A
A
D
D
B
B
B
B
8'-1014/
8'-1014/
0
4
9'-214/
112/
112/
2'-178/
2'-178/
0
1'-6
3'-778/
2'-1
5'-878/
P14
B2
3- P11
1'-1
5'-234/
1'-0
4'-134/
6
3'-134/
1'-0
2'-734/
1'-734/
1'-734/
0
114/
114/
10 x 716/ Ø
B2
P14 3- P11
218/
114/
414/
112/ 438/
3212/
14/
14/
3 SIDES
P11
B2
B - B
312/414/2
112/
112/
112/
P14
B2
A - A
QTY. SITE BOLTS LENGTH
3/4"Ø HILTI_HIT1508 10"
3/4"Ø A325N4 2 1/4"
0 ISSUED TO SHOP 23/06/14 BW
A ISSUED FOR APPROVAL 09/06/14 BW
REV DESCRIPTION DATE BY
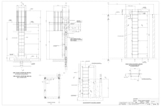
ONE - HANGER - C4
CUSTOMER:
DRAWN BY: DATE: (D/M/Y)
PROJECT:
DWG#
GOVAN BROWN
BW 09/06/14
RBC MAPLE EDMONTON
C4
CHECKED BY:DATE: (D/M/Y)
REV#
0HOLES: 13/16" Ø U.N.O.
PAINT: 1 CT GREY PRIMER JOB#
1233
ALL STEEL CRAFT
PHONE: (780) 478-6668 FAX: (780) 478-6677
FABRICATORS LTD.MARK QTY DESCRIPTION LENGTH WEIGHT REMARKS MATL ABM#
C4 1
C4 1 C3X5 3" 1 300W
0HANGER
L2 1 C3X5 4 15/16" 2 300W
P9 1 PL3/8"X1 1/2" 3 7/8" 1 350W
P16 1 PL3/8"X3" 6 7/16" 2 350W
P17 1 PL1/2"X11" 1'-2 1/16" 19 350W
P20 1 PL1/2"X7" 7" 7 350W
TOTAL WEIGHT THIS DRAWING 31
GRID LOC REF DWGQTY
E11
1316/
12
12
1
916/
1316/
4
1516/2
14/
112/
23
8/C
U
T
4
12/312/
31516/
2
4 4
3
34/34/
14/
14/
14/
14/
14/
PP
14/
45°
PP
316/
45°
45°
PP
BB
CC
A
A
P17
P16
C4
P9
L2
P20
5 3 2
234/ 114/
6716/ 14/
21516/
34/
3
78/
3
8/
12
12
45°
PP
45°
PP
14/
14/
4 SIDES
P17
P20
P9
P16 C4
A - A
234/114/
112/4112/
112/
232
P20
L2
P9
P16
C4
4 X (1 116/ "x1316/ ") SLOTS
B - B
1'-2116/
2552
32
4 7
59
112/ 4 4 112/
2 P17
6 X (1 34/ "x1316/ ") SLOTS
2 X (1316/ "x1 34/ ") SLOTS
C4
P16
P9
L2
C - C
0 ISSUED FOR CONSTRUCTION 22/10/2013 BW
A ISSUED FOR APPROVAL 18/10/2013 BW
REV DESCRIPTION DATE BY
CUSTOMER:
DRAWN BY: DATE: (D/M/Y)
PROJECT:
DWG#
CANBIAN
BW 08/10/13
ROYAL NORTH CENTER
EM1
CHECKED BY:DATE: (D/M/Y)
IC3D
REV#
0HOLES: 13/16" Ø U.N.O.
PAINT: JOB#
1112
ALL STEEL CRAFT
PHONE: (780) 478-6668 FAX: (780) 478-6677
FABRICATORS LTD.
3
4
1
2
A
6
5
EDCB KJHGF
DETAIL 5CX2
(10 LOCATIONS)
DETAIL 5BX2
(16 LOCATIONS)
DETAIL 5B2
(4 LOCATIONS)
DETAIL 5C2
(8 LOCATIONS)
DETAIL 6A
(12 LOCATIONS)
DETAIL 6AX
(2 LOCATIONS)
DETAIL 5B
(4 LOCATIONS)
DETAIL 5BX
(2 LOCATIONS)
DETAIL 5C
(4 LOCATIONS)
A - A
DETAIL 5C3
(ONE LOCATION)
B - B
C - C
SSPC-SP3, SHOP GREY PRIMER U/ N
CUST REF DWG: S1- S7 R0
7
18'-2
20'-0
SEE DWG EM2
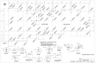
NOTES:
1) TOP OF CONCRETE SLAB ELEV= 100'-0
2) SEE PLAN FOR BASE PLATE DETAIL MARK
3) SEE DWG'S EM2 & EM3 FOR U/SIDE BASE PLATE ELEV'S
4) SEE PLANS FOR X, Y COORDINATES (ORIGIN GRID 6/A)
5) ALL ANCHOR BOLTS ASTM F1554-36
ANCHOR BOLT & FOUNDATION PLAN
H
SS5X5X3
8/
(C
5.6
)
SEE
D
ETAIL
5BX2
X=
107'-5
Y=
74'-11
H
SS6X6X1
4/
(C
6.4
)
SEE
D
ETAIL
6A
X=
23'-3
Y=
25'-7
H
SS6X6X1
4/
(C
6.4
)
SEE
D
ETAIL
6A
X=
23'-3
Y=
7'-7
H
SS5X5X3
16
/
(C
5.3
)
SEE
D
ETAIL
5C
2
X=
46'-3
Y=
7'-7
H
SS6X6X1
4/
(C
6.4
)
SEE
D
ETAIL
6A
X=
46'-3
Y=
25'-7
H
SS6X6X1
4/
(C
6.4
)
SEE
D
ETAIL
6A
X=
46'-3
Y=
50'-3
H
SS5X5X3
16
/
(C
5.3
)
SEE
D
ETAIL
5B2
X=
0'-7
Y=
25'-7
H
SS5X5X3
16
/
(C
5.3
)
SEE
D
ETAIL
5C
2
X=
69'-3
Y=
7'-7
H
SS5X5X3
8/
(C
5.6
)
SEE
D
ETAIL
5C
X2
X=
69'-3
Y=
15'-7
H
SS5X5X3
8/
(C
5.6
)
SEE
D
ETAIL
5BX2
X=
89'-3
Y=
15'-7
H
SS5X5X3
8/
(C
5.6
)
SEE
D
ETAIL
5BX2
X=
83'-10
Y=
15'-7
H
SS6X6X3
8/
(C
6.6
)
SEE
D
ETAIL
6AX
X=
89'-3
Y=
25'-7
H
SS6X6X3
8/
(C
6.6
)
SEE
D
ETAIL
6AX
X=
69'-3
Y=
25'-7
H
SS6X6X1
4/
(C
6.4
)
SEE
D
ETAIL
6A
X=
69'-3
Y=
50'-3
H
SS6X6X1
4/
(C
6.4
)
SEE
D
ETAIL
6A
X=
89'-3
Y=
50'-3
H
SS5X5X3
8/
(C
5.6
)
SEE
D
ETAIL
5BX2
X=
48'-1
Y=
74'-11
H
SS5X5X3
8/
(C
5.6
)
SEE
D
ETAIL
5BX2
X=
44'-5
Y=
74'-11
H
SS5X5X3
16
/
(C
5.3
)
SEE
D
ETAIL
5B
X=
89'-3
Y=
74'-4
H
SS5X5X3
8/
(C
5.6
)
SEE
D
ETAIL
5BX
X=
79'-2
Y=
74'-4
H
SS5X5X3
8/
(C
5.6
)
SEE
D
ETAIL
5C
X2
X=
79'-2
Y=
79'-8
H
SS5X5X3
8/
(C
5.6
)
SEE
D
ETAIL
5C
X2
X=
67'-4
Y=
74'-11
H
SS5X5X3
8/
(C
5.6
)
SEE
D
ETAIL
5C
X2
X=
67'-4
Y=
79'-8
7
24'-8
6'-5
21'-2
23'-0
725'-08'-0
25'-3
H
SS5X5X3
8/
(C
5.6
)
SEE
D
ETAIL
5BX2
X=
0'-7
Y=
42'-3
H
SS5X5X3
16
/
(C
5.3
)
SEE
D
ETAIL
5C
X=
69'-3
Y=
51'-43
4/
H
SS5X5X3
16
/
(C
5.3
)
SEE
D
ETAIL
5B2
X=
23'-3
Y=
0'-7
H
SS5X5X3
16
/
(C
5.3
)
SEE
D
ETAIL
5C
2
X=
46'-3
Y=
0'-7
H
SS6X6X1
4/
(C
6.4
)
SEE
D
ETAIL
6A
X=
23'-3
Y=
50'-3
7'-018'-0
7 8'-0 14'-8
16'-8
7'-08'-010'-0
GRID LINE 6/A
(X=0 Y=0)
H
SS5X5X3
8/
(C
5.6
)
SEE
D
ETAIL
5C
X2
X=
0'-7
Y=
0'-7
H
SS5X5X3
8/
(C
5.6
)
SEE
D
ETAIL
5BX2
X=
8'-7
Y=
0'-7
24'-8
7 3'-0 19'-8
23'-3
30'-9
7
25'-35'-6
H
SS5X5X3
8/
(C
5.6
)
SEE
D
ETAIL
5BX2
X=
0'-7
Y=
50'-3
H
SS5X5X3
8/
(C
5.6
)
SEE
D
ETAIL
5BX
X=
23'-3
Y=
74'-11
H
SS5X5X3
8/
(C
5.6
)
SEE
D
ETAIL
5BX2
X=
23'-3
Y=
81'-0
H
SS5X5X3
8/
(C
5.6
)
SEE
D
ETAIL
5C
X2
X=
0'-7
Y=
81'-0
H
SS5X5X3
8/
(C
5.6
)
SEE
D
ETAIL
5BX2
X=
3'-7
Y=
81'-0
7
14'-7 5'-5
8'-0
7
7
3
1'-134/9'-015'-114/
1'-11
1'-10 1'-10
11'-10
4'-9
23'-0
4'-2
H
SS5X5X3
16
/
(C
5.3
)
SEE
D
ETAIL
5C
3
X=
75'-8
Y=
51'-43
4/
H
SS5X5X3
16
/
(C
5.3
)
SEE
D
ETAIL
5C
X=
69'-3
Y=
60'-43
4/
H
SS5X5X3
16
/
(C
5.3
)
SEE
D
ETAIL
5C
X=
75'-8
Y=
60'-43
4/
3'-8 19'-3
7
7
6'-5
9'-11
10'-1
5'-4
20'-0
1'-2
15'-0
7
4'-0
6'-612/
18'-112/8'-0
3'-6
2'-0
23'-0
H
SS5X5X3
8/
(C
5.6
)
SEE
D
ETAIL
5BX2
X=
153'-3
Y=
79'-0
H
SS5X5X3
8/
(C
5.6
)
SEE
D
ETAIL
5BX2
X=
201'-11
Y=
43'-81
2/
H
SS5X5X3
8/
(C
5.6
)
SEE
D
ETAIL
5C
X2
X=
201'-11
Y=
51'-81
2/
H
SS5X5X3
8/
(C
5.6
)
SEE
D
ETAIL
5BX2
X=
178'-3
Y=
25'-7
H
SS6X6X1
4/
(C
6.4
)
SEE
D
ETAIL
6A
X=
178'-3
Y=
50'-3
H
SS5X5X3
16
/
(C
5.3
)
SEE
D
ETAIL
5B
X=
178'-3
Y=
72'-5
H
SS5X5X3
16
/
(C
5.3
)
SEE
D
ETAIL
5C
X=
199'-4
Y=
72'-5
H
SS5X5X3
16
/
(C
5.3
)
SEE
D
ETAIL
5B
X=
199'-4
Y=
51'-81
2/
H
SS5X5X3
16
/
(C
5.3
)
SEE
D
ETAIL
5B2
X=
178'-3
Y=
79'-0
H
SS5X5X3
16
/
(C
5.3
)
SEE
D
ETAIL
5C
2
X=
132'-3
Y=
17'-7
H
SS5X5X3
16
/
(C
5.3
)
SEE
D
ETAIL
5C
2
X=
132'-3
Y=
25'-7
H
SS6X6X1
4/
(C
6.4
)
SEE
D
ETAIL
6A
X=
132'-3
Y=
50'-3
H
SS5X5X3
16
/
(C
5.3
)
SEE
D
ETAIL
5B2
X=
155'-3
Y=
25'-7
H
SS5X5X3
8/
(C
5.6
)
SEE
D
ETAIL
5BX2
X=
170'-3
Y=
25'-7
H
SS6X6X1
4/
(C
6.4
)
SEE
D
ETAIL
6A
X=
155'-3
Y=
50'-3
H
SS5X5X3
8/
(C
5.6
)
SEE
D
ETAIL
5C
X2
X=
132'-3
Y=
74'-11
H
SS5X5X3
8/
(C
5.6
)
SEE
D
ETAIL
5C
X2
X=
132'-3
Y=
79'-0
H
SS5X5X3
16
/
(C
5.3
)
SEE
D
ETAIL
5C
2
X=
109'-3
Y=
15'-7
H
SS5X5X3
16
/
(C
5.3
)
SEE
D
ETAIL
5C
2
X=
109'-3
Y=
17'-7
H
SS6X6X1
4/
(C
6.4
)
SEE
D
ETAIL
6A
X=
109'-3
Y=
25'-7
H
SS6X6X1
4/
(C
6.4
)
SEE
D
ETAIL
6A
X=
109'-3
Y=
50'-3
H
SS5X5X3
8/
(C
5.6
)
SEE
D
ETAIL
5BX2
X=
111'-1
Y=
74'-11
H
SS5X5X3
16
/
(C
5.3
)
SEE
D
ETAIL
5B
X=
109'-3
Y=
74'-4
H
SS5X5X3
8/
(C
5.6
)
SEE
D
ETAIL
5C
X2
X=
111'-3
Y=
79'-8
73
72'-0
2'-78'-0
SEE DWG EM3
21'-0
2'-0
1'-10 1'-10
23'-0
3'-10
74'-2
2'-0
74'-9
21'-0
4'-1
73'-6
23'-0
8'-0 23'-8 7
7
H
SS5X5X3
16
/
(C
5.3
)
SEE
D
ETAIL
5C
2
X=
201'-11
Y=
25'-7
21'-1
20'-812/3'-1
6'-7
3'-13'-6
24'-3
H
SS5X5X3
8/
(C
5.6
)
SEE
D
ETAIL
5BX2
X=
157'-3
Y=
79'-0
21'-0
2'-7 7
1'-512/
3'-2
412/2
412/ 2
3234/
3 234/
A A
2- AB2
PL1"X9 12/ X 0'-9 12/
412/ 412/
A A
2- AB2PL1"X6 X 1'-1
4 4
B B
2- AB1PL34/ "X6 X 0'-11
112/ 4
3 3
4112/
33
B B
2- AB1
PL34/ "X8 12/ X 0'-8 12/
44
4 4
PL34/ "X11 X 0'-11 4- AB1
412/412/
412/ 412/
A A
4- AB2
PL1"X13 X 1'-1
44
112/ 112/
B
B
4- AB1
PL34/ "X6 X 0'-11
134/ 134/
412/412/
4- AB2
A
APL1"X7 12/ X 1'-1
112/43
3 4 112/
112/3112/
112/
112/ 3 112/
112/
4- AB1
PL34/ "X8 12/ X 0'-8 12/
1'-812/
412/PROJ
1GROUT
TYP ANCHOR SETTING FOR AB2
SEE DETAILS FOR QTY REQ'D
& BOLT PATTERN DIM'S
AB2 - ROD1 14/ X 1'-8 12/
SEE DETAIL
FOR PL SIZE
SEE PLAN
FOR SIZE
112/
112/ 4 3
112/ 3 112/
345
112/3112/
112/
C
C
4- AB1
PL34/ "X8 12/ X 1'-0
H
SS5X5X3
16
/
SH
O
P
W
ELD
ED
ELEVATO
R
FR
AM
E
H
SS5X5X3
8/
1'-4
312/
4PROJ
1GROUT
TYP ANCHOR SETTING FOR AB1
SEE DETAILS FOR QTY REQ'D
& BOLT PATTERN DIM'S
AB1 - ROD34/ X 1'-6 14/
SEE DETAIL
FOR PL SIZE
SEE PLAN
FOR SIZE
138/
158/ 4
312/
6
4
4PROJ
1GROUT
L4X4X38/
AB1 - ROD34/ X 1'-6 14/
HSS5X5X316/HSS5X5X38/
ELEVATOR
DOOR FRAME
0 ISSUED FOR CONSTRUCTION 22/10/2013 BW
A ISSUED FOR APPROVAL 18/10/2013 BW
REV DESCRIPTION DATE BY
CUSTOMER:
DRAWN BY: DATE: (D/M/Y)
PROJECT:
DWG#
CANBIAN
BW 15/10/13
ROYAL NORTH CENTER
EM2
CHECKED BY:DATE: (D/M/Y)
IC3D
REV#
0HOLES: 13/16" Ø U.N.O.
PAINT: JOB#
1112
ALL STEEL CRAFT
PHONE: (780) 478-6668 FAX: (780) 478-6677
FABRICATORS LTD.
A
2
1
B C D E
5
4
3
F
6
412/
4
4
4412/
24'-1
4
44
412/412/
412/
3
3
7
4
7
25'-3
112/
112/
6'-5
9'-0
112/
112/
112/ 112/
1'-8
34'-9
3
1'-11
24'-8
1'-101'-10
30'-9
23'-0
11'-10
2- AB2
2- AB1
4- AB1
U
/S
B
PL
ELEV=
100'-1
SEE
D
ETAIL
5C
X2
X=
67'-4
Y=
79'-8
U
/S
B
PL
ELEV=
100'-1
SEE
D
ETAIL
5BX2
X=
48'-1
Y=
74'-11
U
/S
B
PL
ELEV=
99'-8
SEE
D
ETAIL
6A
X=
69'-3
Y=
50'-3
U
/S
B
PL
ELEV=
100'-1
SEE
D
ETAIL
5C
2
X=
69'-3
Y=
7'-7
U
/S
B
PL
ELEV=
100'-1
SEE
D
ETAIL
5C
X=
75'-8
Y=
60'-43
4/
U
/S
B
PL
ELEV=
100'-1
SEE
D
ETAIL
5C
X=
69'-3
Y=
60'-43
4/
U
/S
B
PL
ELEV=
100'-1
SEE
D
ETAIL
5B
X=
109'-3
Y=
74'-4
U
/S
B
PL
ELEV=
100'-1
SEE
D
ETAIL
5C
2
X=
109'-3
Y=
17'-7
U
/S
B
PL
ELEV=
99'-1
SEE
D
ETAIL
6A
X=
109'-3
Y=
25'-7
U
/S
B
PL
ELEV=
99'-1
SEE
D
ETAIL
6A
X=
109'-3
Y=
50'-3
U
/S
B
PL
ELEV=
100'-1
SEE
D
ETAIL
5BX2
X=
111'-1
Y=
74'-11
U
/S
B
PL
ELEV=
100'-1
SEE
D
ETAIL
5BX2
X=
107'-5
Y=
74'-11
U
/S
B
PL
ELEV=
100'-1
SEE
D
ETAIL
5B2
X=
23'-3
Y=
0'-7
22'-8
14'-8
10'-0
18'-0
725'-0
4- AB1 4- AB1
GRID LINE 6/A
(X=0 Y=0)
U
/S
B
PL
ELEV=
99'-1
SEE
D
ETAIL
6A
X=
23'-3
Y=
7'-7
U
/S
B
PL
ELEV=
100'-1
SEE
D
ETAIL
5C
2
X=
46'-3
Y=
7'-7
U
/S
B
PL
ELEV=
99'-1
SEE
D
ETAIL
6A
X=
46'-3
Y=
25'-7
U
/S
B
PL
ELEV=
99'-1
SEE
D
ETAIL
6A
X=
46'-3
Y=
50'-3
U
/S
B
PL
ELEV=
100'-1
SEE
D
ETAIL
5B2
X=
0'-7
Y=
25'-7
U
/S
B
PL
ELEV=
99'-1
SEE
D
ETAIL
6A
X=
23'-3
Y=
50'-3
U
/S
B
PL
ELEV=
99'-1
SEE
D
ETAIL
6A
X=
23'-3
Y=
25'-7
U
/S
B
PL
ELEV=
100'-1
SEE
D
ETAIL
5BX2
X=
0'-7
Y=
42'-3
U
/S
B
PL
ELEV=
100'-1
SEE
D
ETAIL
5BX2
X=
0'-7
Y=
50'-3
U
/S
B
PL
ELEV=
100'-1
SEE
D
ETAIL
5BX2
X=
8'-7
Y=
0'-7
U
/S
B
PL
ELEV=
100'-1
SEE
D
ETAIL
5C
X2
X=
0'-7
Y=
0'-7
U
/S
B
PL
ELEV=
100'-1
SEE
D
ETAIL
5C
2
X=
46'-3
Y=
0'-7
412/
412/
7 8'-0
412/ 412/
7'-08'-0
2- AB2
2- AB2
7
3
25'-3
44412/412/412/412/
16'-88'-0
2- AB2
2- AB2
2- AB1
3
3
4 4
4 4
44
4
4
4
4
7'-0
2- AB1
4- AB1
2- AB1
2- AB1
4 4
44
44
4 4
4 4
4 4
44
44
24'-8
4- AB1
4- AB1
5'-6
23'-3
19'-8
2- AB2
2- AB2
2- AB2 2- AB2
U
/S
B
PL
ELEV=
100'-1
SEE
D
ETAIL
5C
X2
X=
67'-4
Y=
74'-11
U
/S
B
PL
ELEV=
100'-1
SEE
D
ETAIL
5BX2
X=
44'-5
Y=
74'-11
U
/S
B
PL
ELEV=
100'-1
SEE
D
ETAIL
5BX
X=
23'-3
Y=
74'-11
U
/S
B
PL
ELEV=
100'-1
SEE
D
ETAIL
5BX2
X=
3'-7
Y=
81'-0
U
/S
B
PL
ELEV=
100'-1
SEE
D
ETAIL
5C
X2
X=
0'-7
Y=
81'-0
U
/S
B
PL
ELEV=
100'-1
SEE
D
ETAIL
5BX2
X=
23'-3
Y=
81'-0
412/
5'-310
412/
10
6'-1
412/ 412/
7 3'-0
2- AB2
3
412/
412/
412/
7
412/ 412/
412/ 412/
1'-10 1'-10
134/ 134/
8
412/412/
1'-75
6
412/ 412/
3
23'-0
21'-2 3'-8 19'-3
4- AB2
2- AB2
2- AB2
412/
72'-07'-5
412/
4- AB2
4- AB2 4- AB2
4- AB1
FORCONTINUATIONSEEDWGEM3
REF. DWG EM1
ENLARGED ANCHOR BOLT SETTING PLAN
U
/S
B
PL
ELEV=
100'-1
SEE
D
ETAIL
5BX2
X=
89'-3
Y=
15'-7
U
/S
B
PL
ELEV=
100'-1
SEE
D
ETAIL
5BX2
X=
83'-10
Y=
15'-7
U
/S
B
PL
ELEV=
99'-1
SEE
D
ETAIL
6AX
X=
89'-3
Y=
25'-7
U
/S
B
PL
ELEV=
99'-1
SEE
D
ETAIL
6AX
X=
69'-3
Y=
25'-7
U
/S
B
PL
ELEV=
99'-1
SEE
D
ETAIL
6A
X=
89'-3
Y=
50'-3
U
/S
B
PL
ELEV=
100'-1
SEE
D
ETAIL
5C
X2
X=
69'-3
Y=
15'-7
U
/S
B
PL
ELEV=
100'-1
SEE
D
ETAIL
5C
3
X=
75'-8
Y=
51'-43
4/
U
/S
B
PL
ELEV=
100'-1
SEE
D
ETAIL
5C
X=
69'-3
Y=
51'-43
4/
U
/S
B
PL
ELEV=
100'-1
SEE
D
ETAIL
5C
2
X=
109'-3
Y=
15'-7
4
412/412/412/
412/
14'-7 5'-5
78'-03
2- AB2 2- AB2
4
4
44412/412/
412/
4 4
112/
112/
112/ 112/
1'-134/
112/112/
112/112/
4- AB1
4- AB1
4- AB1
412/
4
4
4
4
4
4
3
SSPC-SP3, SHOP GREY PRIMER U/ N
2- AB1
2- AB1
412/412/
412/ 412/
44
4 4
4- AB1
20'-0
18'-2
4- AB1
2- AB2
2- AB2
U
/S
B
PL
ELEV=
100'-1
SEE
D
ETAIL
5B
X=
89'-3
Y=
74'-4
U
/S
B
PL
ELEV=
100'-1
SEE
D
ETAIL
5BX
X=
79'-2
Y=
74'-4
U
/S
B
PL
ELEV=
100'-1
SEE
D
ETAIL
5C
X2
X=
79'-2
Y=
79'-8
U
/S
B
PL
ELEV=
100'-1
SEE
D
ETAIL
5C
X2
X=
111'-3
Y=
79'-8
6'-5 3'-6
4
15'-114/
112/
112/
4
412/412/
134/134/
112/112/
4 4
410
2'-0
9'-8 3
1'-24'-9
412/
412/
3
3'-1110
9'-11
1'-2
20'-0
5'-4
10'-1
4- AB2
2- AB2
4- AB1
4- AB1
412/
412/
74'-9
74'-2
1'-8 4
412/ 412/
4 4
412/ 412/
3'-113
2'-0
3'-10
0 ISSUED FOR CONSTRUCTION 22/10/2013 BW
A ISSUED FOR APPROVAL 18/10/2013 BW
REV DESCRIPTION DATE BY
CUSTOMER:
DRAWN BY: DATE: (D/M/Y)
PROJECT:
DWG#
CANBIAN
BW 16/10/13
ROYAL NORTH CENTER
EM3
CHECKED BY:DATE: (D/M/Y)
IC3D
REV#
0HOLES: 13/16" Ø U.N.O.
PAINT: JOB#
1112
ALL STEEL CRAFT
PHONE: (780) 478-6668 FAX: (780) 478-6677
FABRICATORS LTD.
2
1
3
F G H J K
4
SSPC-SP3, SHOP GREY PRIMER U/ N
7
3'-2
24'-1
412/
25'-3
23'-0
15'-0
1'-101'-10
20'-812/
21'-0
ENLARGED ANCHOR BOLT SETTING PLAN
4- AB1
2- AB2
U
/S
B
PL
ELEV=
99'-1
SEE
D
ETAIL
6A
X=
155'-3
Y=
50'-3
U
/S
B
PL
ELEV=
100'-1
SEE
D
ETAIL
5B2
X=
155'-3
Y=
25'-7
U
/S
B
PL
ELEV=
100'-1
SEE
D
ETAIL
5BX2
X=
157'-3
Y=
79'-0
U
/S
B
PL
ELEV=
100'-1
SEE
D
ETAIL
5B
X=
178'-3
Y=
72'-5
U
/S
B
PL
ELEV=
100'-1
SEE
D
ETAIL
5BX2
X=
153'-3
Y=
79'-0
8'-024'-8
25'-3
2'-78'-0
2- AB1
2- AB1
4- AB1
2- AB1
FORCONTINUATIONSEEDWGEM2
SEE
D
ETAIL
6A
X=
109'-3
Y=
50'-3
SEE
D
ETAIL
6A
X=
109'-3
Y=
25'-7
SEE
D
ETAIL
5C
2
X=
109'-3
Y=
17'-7
SEE
D
ETAIL
5C
2
X=
109'-3
Y=
15'-7
U
/S
B
PL
ELEV=
99'-1
SEE
D
ETAIL
6A
X=
132'-3
Y=
50'-3
U
/S
B
PL
ELEV=
100'-1
SEE
D
ETAIL
5C
2
X=
132'-3
Y=
25'-7
U
/S
B
PL
ELEV=
100'-1
SEE
D
ETAIL
5C
2
X=
132'-3
Y=
17'-7
412/412/
412/ 412/
72'-0
4
4
4
4
7
10'-0
44
4 4
4
3
4
4
4 4 4
44
44
4 4
4 4
3'-6
23'-0 23'-0
21'-0 21'-0 4'-0
2- AB2
2- AB2
2- AB2
SEE
D
ETAIL
5C
X2
X=
111'-3
Y=
79'-8
SEE
D
ETAIL
5B
X=
109'-3
Y=
74'-4
SEE
D
ETAIL
5BX2
X=
107'-5
Y=
74'-11
SEE
D
ETAIL
5BX2
X=
111'-1
Y=
74'-11
U
/S
B
PL
ELEV=
100'-1
SEE
D
ETAIL
5C
X2
X=
132'-3
Y=
79'-0
U
/S
B
PL
ELEV=
100'-1
SEE
D
ETAIL
5C
X2
X=
132'-3
Y=
74'-11
74'-9
10
4'-2
74'-2
2'-0
3'-10
3
7
412/412/ 412/
3
412/
412/
412/
412/
4'-1
2'-02'-0
7
23'-8
718'-112/8'-0
1'-512/6'-612/
2- AB1
2- AB2
2- AB2
2- AB2 2- AB2
4- AB1
4- AB1
REF. DWG EM1
U
/S
B
PL
ELEV=
100'-1
SEE
D
ETAIL
5BX2
X=
170'-3
Y=
25'-7
U
/S
B
PL
ELEV=
99'-1
SEE
D
ETAIL
6A
X=
178'-3
Y=
50'-3
U
/S
B
PL
ELEV=
100'-1
SEE
D
ETAIL
5BX2
X=
178'-3
Y=
25'-7U
/S
B
PL
ELEV=
100'-1
SEE
D
ETAIL
5B
X=
199'-4
Y=
51'-81
2/U
/S
B
PL
ELEV=
100'-1
SEE
D
ETAIL
5C
X2
X=
201'-11
Y=
51'-81
2/
U
/S
B
PL
ELEV=
100'-1
SEE
D
ETAIL
5BX2
X=
201'-11
Y=
43'-81
2/
U
/S
B
PL
ELEV=
100'-1
SEE
D
ETAIL
5C
2
X=
201'-11
Y=
25'-7
412/ 412/
412/ 412/
8'-0
44
4 4
10
4
4
7
7
10
412/412/
44
412/
412/112/ 112/
2'-7 7
4 4
112/ 112/
4
112/112/
4
112/112/
4 4
3
4'-1
3'-310
2
24'-3
6'-7
3'-13'-6
3'-1
21'-1 3'-2
4- AB1 4- AB1
2- AB1
U
/S
B
PL
ELEV=
100'-1
SEE
D
ETAIL
5B2
X=
178'-3
Y=
79'-0
U
/S
B
PL
ELEV=
100'-1
SEE
D
ETAIL
5C
X=
199'-4
Y=
72'-5
CUSTOMER:
DRAWN BY: DATE: (D/M/Y)
PROJECT:
DWG#
CANBIAN
BW 18/10/13
ROYAL NORTH CENTER
E1
CHECKED BY:DATE: (D/M/Y)
IC3D
REV#
0HOLES: 13/16" Ø U.N.O.
PAINT: SSPC-SP3,SHOP GREY PRIMER JOB#
1112
ALL STEEL CRAFT
PHONE: (780) 478-6668 FAX: (780) 478-6677
FABRICATORS LTD.
0 ISSUED FOR CONSTRUCTION 25/11/13
A ISSUED FOR APPROVAL 31/10/13
REV DESCRIPTION DATE BY
1
2
3
4
56 G
F
E
D
K
J
H
C
B
A
1
2
3
D
C
B
A
4
5
6
5
1
2
3
4
E
D
C
G
F
SEE DWG E3 FOR
LOW ROOF @ ELEV 118'-412/
SEE DWG E11 FOR
RTU FRAMES
SEE DWG E13 FOR
STAIR & H/RAIL
SEE DWG E8 FOR
CANOPIES @ ELEV 124'-0
SEE DWG E14 FOR
LADDERS
SEE DWG E4 FOR
ROOF @ ELEV 127'-112/
SEE DWG E5 FOR
STAIR LANDINGS @ ELEV 106'-8
ROYAL NORTH CENTER ISOMETRIC VIEWS
SEE DWG E2 FOR
2ND FLOOR @ ELEV 113'-8
SEE DWG EM1 - EM3 FOR
ANCHOR BOLT PLAN
SEE DWG E6 FOR WINDOW,
SILL & HEADER FRAMING
SEE DWG E5 FOR
HIGH ROOF @ ELEV 131'-10 12/
SEE DWG E9 FOR
CANOPIES @ ELEV 128'-0
SEE DWG E11 FOR
RTU FRAMES
SEE DWG E12 FOR
STAIR & H/RAIL
SEE DWG E5 FOR
STAIR LANDINGS @ ELEV 106'-8
SEE DWG E4 FOR
ROOF @ ELEV 127'-112/
SEE DWG E7 FOR
VERT CROSS BRACING
SEE DWG E14 FOR
LADDERS
SEE DWG E10 FOR
ELEVATOR FRAMING
SEE DWG E3 FOR
LOW ROOF @ ELEV 118'-412/
SEE DWG E11 FOR
RTU FRAMES
SEE DWG E5 FOR
HIGH ROOF @ ELEV 131'-10 12/
SEE DWG E6 FOR WINDOW,
SILL & HEADER FRAMING
SEE DWG E2 FOR
2ND FLOOR @ ELEV 113'-8
SEE DWG E9 FOR
CANOPIES @ ELEV 128'-0
SEE DWG E3 FOR
LOW ROOF @ ELEV 118'-412/
SEE DWG E7 FOR
VERT CROSS BRACING
SEE DWG E4 FOR
ROOF @ ELEV 127'-112/
SEE DWG E14 FOR
LADDERS
CUSTOMER:
DRAWN BY: DATE: (D/M/Y)
PROJECT:
DWG#
CANBIAN
BW 18/10/13
ROYAL NORTH CENTER
E3
CHECKED BY:DATE: (D/M/Y)
IC3D
REV#
0HOLES: 13/16" Ø U.N.O.
PAINT: SSPC-SP3,SHOP GREY PRIMER JOB#
1112
ALL STEEL CRAFT
PHONE: (780) 478-6668 FAX: (780) 478-6677
FABRICATORS LTD.
0 ISSUED FOR CONSTRUCTION 25/11/13
A ISSUED FOR APPROVAL 31/10/13
REV DESCRIPTION DATE BY
6
CBA
1
2
3
4
5
D
E2
1
2
3
G
C
KJH
SECT. B / E3
122'-0"1/2
119'-5"1/2
118'-4"1/2
G
SECT. C / E3
122'-0"1/2
119'-5"1/2
118'-4"1/2
B
SECT. A / E3
124'-0
118'-4"1/2
SECT. D / E3
CUST REF DWG: S5 R0
7
7 8'-0 14'-8
A
E2
C
2
H
SS5X5X3
16
/
H
SS5X5X3
8/
(F1
)
F1
C
O
L
BEN
T
H
SS5X5X3
8/
C
6
H
SS5X5X3
16
/
SEE DWG E2 FOR TYP SECTIONS & DETAILS
LOW ROOF FRAMING PLAN
NOTES:
1) TOP OF STEEL ELEV= 118'-4 12/ U/NOTED
(-338/ ) FOR JOIST SHOE DEPTH
2) ALL BOLTS 34/ A325 U/NOTED
3) SEE JOIST DWG'S FOR JOIST DETAILS
25'-0316/16'-71316/8'-030'-9
25'-35'-6
1'-15'-0
6'-2
LOOSEDECKLLINLENGTH=66'-1012/
7
LOOSEDECKLLINLENGTH=80'-5
59 PL14/ "X6
B
H
SS4X4X3
16
/
PO
ST
(ABO
VE)
B
E2
H
SS4X4X3
16
/
PO
ST
(ABO
VE)
M2 LOOSE DECK
L4X4X14/ FIELD CUT
& WELD TO SUIT
H
SS5X5X3
8/
(F2
)
7'-08'-010'-025'-3
B
11'-4 11'-4
6'-2
A
E2
6'-0
TJ
TJ
C
3
H
SS6X6X1
4/
C
4
H
SS6X6X1
4/
B14W14X22(-338/)
B7 W14X22
B11 W14X22
B1W16X26(-338/)C
1
H
SS5X5X3
16
/
B15 HSS7X5X38/
TOS EL= 119'-512/
SEE DWG E6
M2 LOOSE DECK
L4X4X14/ FIELD CUT
& WELD TO SUIT
16"_OWSJ
16"_OWSJ
16"_OWSJ
16"_OWSJ
W14X22 ( F1 )
B12W14X22
B38 W8X18
B32 W12X19
B31 W8X18
16"_OWSJ
3'-63'-66'-06'-06'-2
TJ
1'-614/
3'-4
1'-114/
6'-26'-26'-112/6'-212/
F27 C4X4.5
( RTU-1 )
DET. RTU-1
E11
M3 LADDER
SEE DWG E14
58 PL14/ "X6
A
TJTJ
C
5
H
SS6X6X1
4/
B18W16X36(-338/)
B2W14X22(-338/)
F2
C
O
L
BEN
T
H
SS5X5X3
8/
B19 HSS7X5X38/
TOS EL= 119'-512/
SEE DWG E6
M2 LOOSE DECK
L4X4X14/ FIELD CUT
& WELD TO SUIT
16"_OWSJ
16"_OWSJ
16"_OWSJ
W14X22(F2)(-338/)
M2 LOOSE DECK
L4X4X14/ FIELD CUT
& WELD TO SUIT
16"_OWSJ
16"_OWSJ
1'-614/
A
E2
C
8
H
SS6X6X1
4/
C
7
H
SS5X5X3
16
/
B39 HSS7X5X38/
TOS EL= 119'-512/
SEE DWG E6
B42W14X22
F6 HSS7X5X38/
TOS EL= 116'-1112/
SEE DWG E6
C
9
H
SS6X6X1
4/
5'-8 5'-8
6'-2
1'-05'-1
23'-3 23'-0
3'-0 19'-8
CANOPY ABOVE
SEE DWG E8
B3W18X40(-338/)
H
SS5X5X3
8/
F5
C
O
L
BEN
T
H
SS5X5X3
8/
H
SS5X5X3
8/
(F5
)
B22W16X36(-338/)
B6 W14X22
B23 HSS7X5X38/
TOS EL= 119'-512/
SEE DWG E6
16"_OWSJ
B4 W14X22
H
SS4X4X3
16
/
PO
ST
(ABO
VE)
B28 HSS7X5X38/
TOS EL= 116'-1112/
SEE DWG E6
B10 W14X22
H
SS5X5X3
8/
(F3
)
F3
C
O
L
BEN
T
H
SS5X5X3
8/
F4
H
SS5X5X3
8/
H
SS4X4X3
16
/
PO
ST
(ABO
VE)
H
SS4X4X3
16
/
PO
ST
(ABO
VE)
B5W14X22
W14X22
B8W14X22
H
SS4X4X3
16
/
PO
ST
(ABO
VE)
H
SS4X4X3
16
/
PO
ST
(ABO
VE)
B8W14X22
B47 HSS7X5X38/
TOS EL= 116'-1112/
SEE DWG E6
5'-8
5'-9
21'-0
4'-6
LOOSE DECK L LIN LENGTH= 69'-3
23'-0
M3 LADDER
SEE DWG E14
F13
C
O
L
BEN
T
H
SS5X5X3
8/
H
SS4X4X3
16
/
PO
ST
(ABO
VE)
B148
W14X22
C
32
H
SS5X5X3
16
/
24'-8
25'-3
B23 HSS7X5X38/
TOS EL= 119'-512/
SEE DWG E6
724'-8
25'-3
B23 HSS7X5X38/
TOS EL= 119'-512/
SEE DWG E6
B144W14X22
B59 HSS5X5X14/
TOS EL= 116'-1112/
SEE DWG 56
C
33
H
SS6X6X1
4/
1'-03'-1
4'-1
3'-6
H
SS5X5X3
8/
(F13
)
B144W14X22
B28 HSS7X5X38/
TOS EL= 116'-1112/
SEE DWG E6
3'-1
5'-11
20'-112'-1012/
2'-7
5'-6
24'-3
H
SS4X4X3
16
/
PO
ST
(ABO
VE)
H
SS4X4X3
16
/
PO
ST
(ABO
VE)
18"_OWSJ
B172W8X18
C
39
H
SS5X5X3
16
/
C
40
H
SS5X5X3
16
/
6
5'-9
15'-0
DET. RTU-7
E11
F42 C4X4.5
( RTU-7 )
SEE DWG E2 FOR TYP SECTIONS & DETAILS
LOW ROOF FRAMING PLAN
NOTES:
1) TOS ELEV & U/SIDE DECK ELEV= 118'-412/
U/NOTED "(-338/ )"" FOR JOIST SHOE DEPTH
2) ROOF SLOPE & LOW POINT ELEV NOTED ON PLAN
3) ALL BOLTS 34/ A325 U/NOTED
4) SEE JOIST DWG'S FOR JOIST DETAILS
B171
W14X22
M2 LOOSE DECK
L4X4X14/ FIELD CUT
& WELD TO SUIT
TJ
B158 W8X18 (-338/ )
C
34
H
SS5X5X3
16
/
B153 W16X26 (-338/ )
6
5'-0
DET. RTU-6
E11
F41 C4X4.5
( RTU-6 )
ROOF lLOW POINT -3
U/S DECK EL= 118'-1 12/
TJ
18"_OWSJ
18"_OWSJ
18"_OWSJ
18"_OWSJ
18"_OWSJ
18"_OWSJ
18"_OWSJ
B159 W16X36 (-338/ )
C
35
H
SS6X6X1
4/
B154 W18X40 (-338/ )
4'-6 4'-6 4'-6
3'-012/
5'-9 5'-9
3'-012/
5
8'-0 18'-2
W14X22 ( F15 ) (-338/ )
F15
C
O
L
BEN
T
H
SS5X5X3
8/
H
SS5X5X3
8/
(F15
)
TJ
B166 W14X22 (-338/ )
3'-012/
6
5'-9 5'-11 5'-11 5'-11
DET. RTU-8
E11
F43 C4X4.5
( RTU-8 )
TJ
ROOF lLOW POINT -3
U/S DECK EL= 118'-1 12/
TJ
18"_OWSJ
18"_OWSJ
18"_OWSJ
18"_OWSJ
B173
W8X18
B170
W14X22
B169
W14X22
B168W14X22
B167 W16X36 (-338/ )
C
36
H
SS6X6X1
4/
5'-9 11'-6
25'-0 21'-2
712/
2'-0
23'-0
H
SS4X4X3
16
/
PO
ST
(ABO
VE)
H
SS4X4X3
16
/
PO
ST
(ABO
VE)
H
SS4X4X3
16
/
PO
ST
(ABO
VE)
H
SS4X4X3
16
/
PO
ST
(ABO
VE)
H
SS4X4X3
16
/
PO
ST
(ABO
VE)
H
SS4X4X3
16
/
PO
ST
(ABO
VE)
H
SS4X4X3
16
/
PO
ST
(ABO
VE)
H
SS4X4X3
16
/
PO
ST
(ABO
VE)
H
SS4X4X3
16
/
PO
ST
(ABO
VE)
CANOPY ABOVE
SEE DWG E8
D
E2
B
E2
A
E2
M2 LOOSE DECK
L4X4X14/ FIELD CUT
& WELD TO SUIT
W14X22
H
SS5X5X3
8/
(F14
)
F14
C
O
L
BEN
T
H
SS5X5X3
8/
TJ
18"_OWSJ
18"_OWSJ
18"_OWSJ
C
38
H
SS5X5X3
16
/
B161 W14X22 B164 W14X22
B163 W14X22
B165 W14X22 (-338/ )
B156W14X22
C
37
H
SS5X5X3
16
/
B162W14X22
B157W14X22
B157W14X22
B152 W14X22
B155W14X22
B155W14X22
B150W14X22
B149W14X22
5'-9 5'-9
LOOSE DECK L LIN LENGTH= 20'-11 78/
6'-6
1'-512/
6'-75'-012/
18'-112/8'-0
7
7
CANOPY ABOVE
SEE DWG E8
D
E2
H
SS4X4X3
16
/
PO
ST
(ABO
VE)
H
SS4X4X3
16
/
PO
ST
(ABO
VE)
H
SS5X5X3
8/
(F16
)
H
SS4X4X3
16
/
PO
ST
(ABO
VE)
F16
C
O
L
BEN
T
H
SS5X5X3
8/
H
SS4X4X3
16
/
PO
ST
(ABO
VE)
W14X22
H
SS4X4X3
16
/
PO
ST
(ABO
VE)
B174W14X22C
41
H
SS5X5X3
16
/
338/
3
SEE PLAN FOR
SIZE & MARK
SEE PLAN FOR
SIZE & MARK
M2 DECK L4X4X14/
SHOP WELDED
TO BEAM
WT4X9
1'-12'-7
SEE PLAN FOR
SIZE & MARK
HSS7X5X38/
U/SIDE EL= 122'-012/
SEE DWG E6
DECK L4X4X14/
SHOP WELDED
TO BEAM
HSS7X5X38/
TOS EL= 119'-512/
SEE DWG E6
338/
3
2'-71'-1
OWSJ (BY OTHERS)
HSS7X5X38/
TOS EL= 119'-512/
SEE DWG E6
SEE PLAN FOR
SIZE & MARK
LOOSE DECK L4X4X14/
SEE PLAN FOR
LIN LENGTH REQ'D
FIELD CUT FROM STOCK
LENGTHS AS REQ'D
HSS7X5X38/
U/SIDE EL= 122'-012/
SEE DWG E6
5'-712/
5'-1112/
HSS4X4X316/
SHOP WELDED
TO BEAM
CANOPY FRAMING
SEE DWG Exx
CUSTOMER:
DRAWN BY: DATE: (D/M/Y)
PROJECT:
DWG#
CANBIAN
BW 18/10/13
ROYAL NORTH CENTER
E4
CHECKED BY:DATE: (D/M/Y)
IC3D
REV#
0HOLES: 13/16" Ø U.N.O.
PAINT: SSPC-SP3,SHOP GREY PRIMER JOB#
1112
ALL STEEL CRAFT
PHONE: (780) 478-6668 FAX: (780) 478-6677
FABRICATORS LTD.
0 ISSUED FOR CONSTRUCTION 25/11/13
A ISSUED FOR APPROVAL 31/10/13
REV DESCRIPTION DATE BY
1
2
3
4
5
GFEDCB
A
E2
A
E2
127'-1"1/2
1
SECT. A / E4
CUST REF DWG: S7 R0
LOOSE DECK L LIN LENGTH= 46'-5 12/
2'-77'-1134/24'-814/24'-87
75'-75'-8
M3 LADDER
SEE DWG E14
A
E2
NOTES:
1) TOS ELEV & U/SIDE DECK ELEV= 127'-112/
U/NOTED "(-338/ )" FOR JOIST SHOE DEPTH
2) ROOF SLOPE & LOW POINT ELEV NOTED ON PLAN
3) ALL BOLTS 34/ A325 U/NOTED
4) SEE JOIST DWG'S FOR JOIST DETAILS
C
33
H
SS6X6X1
4/
C
32
H
SS5X5X3
16
/
HSS4X4X316/ POSTS
FOR CANOPY ABOVE
(SEE DWG E9)
12'-012/
36'-6
36'-6
12'-712/
5'-9
5'-1 1'-0
19'-3
5'-7
24'-8
8'-010'-0
24'-1
4'-9
25'-3
23'-0
DET. RTU-3
E11
F33 C4X4.5
( RTU-3 )
F30 C4X4.5
( RTU-9 )
F31 C4X4.5
( RTU-9 )
ELEVATOR
FRAME F8
SEE DWG E10
C
13
H
SS6X6X1
4/
C
11
H
SS5X5X3
8/
C
10
H
SS5X5X3
16
/
H
SS5X5X3
8/
(F7
)
B106W14X22
C
14
H
SS4X4X1
4/
C
23
H
SS4X4X1
4/
B106W14X22
C
58
H
SS4X4X1
4/
3'-4
5'-9
24'-8
25'-3
SLOPEDOWN
817'-11
8'-010'-0
C
3
H
SS6X6X1
4/
C
4
H
SS6X6X1
4/
B16W8X18
B34 W16X26 (-338/ )
B40 W14X22 (-338/ )
16"_OWSJ
1'-114/
5'-9
M3 LADDER
SEE DWG E14
C
5
H
SS6X6X1
4/
B20W8X18
B36 W16X26 (-338/ )
16"_OWSJ
B26 W14X22
1'-614/
1'-614/
5'-05'-0
SLOPEDOWN
SLOPE DOWNSLOPE DOWN
ROOF lLOW POINT -1 14/
U/S DECK EL= 127'-0 14/
DET. RTU-10
E11
F29 C4X4.5
( RTU-10 )
F32 C4X4.5
( RTU-10 )
TJ
TJ
TJ
B
E2
16"_OWSJ
C
8
H
SS6X6X1
4/
C
7
H
SS5X5X3
16
/
M2 LOOSE DECK
L4X4X14/ FIELD CUT
& WELD TO SUIT
16"_OWSJ
16"_OWSJ
16"_OWSJ
B52 W14X22 (-338/ )
B34 W16X26 (-338/ )
16"_OWSJ
16"_OWSJ
12'-712/
5'-9
DET. RTU-2
E11
DET. RTU-9
E11
F28 C4X4.5
( RTU-2 )
TJ
ROOF lLOW POINT -3
U/S DECK EL= 126'-10 12/
C
9
H
SS6X6X1
4/
16"_OWSJ
16"_OWSJ
16"_OWSJ
B49 W16X26 (-338/ )
16"_OWSJ
16"_OWSJ
16"_OWSJ
3'-012/
5'-9 5'-9
1'-614/
1'-614/
SLOPEDOWN
SLOPE DOWN
3'-4
3'-012/
5'-9 5'-9
SLOPE DOWN
21'-2
23'-0
CANOPY ABOVE
SEE DWG E9
5'-8
7
CANOPY BELOW
SEE DWG E8
B24W14X22
HSS4X4X316/ POSTS
FOR CANOPY ABOVE
(SEE DWG E9)
B27W14X22
B30 W14X22
B25 W14X22
5'-0 5'-0 5'-0
1'-10
3'-8
F5
C
O
L
BEN
T
H
SS5X5X3
8/
H
SS5X5X3
8/
(F5
)
B43W14X22
B35W14X22
B35W14X22
W14X22
B54W14X22
B53W14X22
B44W14X22
B48 W14X22
3'-03'-012/
1'-614/
1'-614/
12'-012/
7'-0
6'-8
SLOPEDOWN
DET. RTU-13
E11
DET. RTU-4
E11
F38 C4X4.5
( RTU-13 )
F36 C4X4.5
( RTU-13 )
SEE DWG E2 FOR TYP SECTIONS & DETAILS
ROOF lLOW POINT -3
U/S DECK EL= 126'-10 12/
M7 LADDER
SEE DWG E14
ROOF FRAMING PLAN
C
19
H
SS5X5X3
8/
C
20
H
SS5X5X3
8/
B88 W16X26 B118 W8X18B103 W8X18
A
E2
A
E2
B60W8X18
ROOF HATCH
TJ
C
12
H
SS6X6X3
8/
B86W8X10
B63W16X26
B93 W14X22 (-338/ )
B86W8X10
SLOPEDOWN
SLOPE DOWN
ROOF lLOW POINT - 78/
U/S DECK EL= 127'-0 58/
TJ
C
21
H
SS6X6X3
8/
B93 W14X22 (-338/ )
B179W16X26
B114W8X10
6'-02'-2
6'-8
SLOPE DOWN
DET. RTU-11
E11
F34 C4X4.5
( RTU-11 )
TJ
TJ
ROOF lLOW POINT -3
U/S DECK EL= 126'-10 12/
C
22
H
SS6X6X1
4/
16"_OWSJ
16"_OWSJ
B82 W8X10
B95 W16X26 (-338/ )
B121 W16X26 (-338/ )
16"_OWSJ
16"_OWSJ
16"_OWSJ
F8
H
SS5X5X3
16
/
W8X10
W8X18
W8X18
W8X18
W8X18
6'-8 6'-8
3'-6
3'-4
6'-8
F35 C4X4.5
( RTU-4 )
SLOPEDOWN
72'-0
SLOPEDOWN
SLOPE DOWNSLOPE DOWN
B130W8X10
ROOF lLOW POINT - 34/
U/S DECK EL= 127'-0 34/
TJ
C
E2
A
E2
C
27
H
SS6X6X1
4/
C
31
H
SS5X5X3
16
/
C
26
H
SS5X5X3
16
/
C
25
H
SS5X5X3
16
/
B133 W8X18
B136 W16X26 (-338/ )
B126W8X10
B130W8X10
B181W8X10
B125 W8X18
B180W8X10
B143W8X18
7'-0
5'-9
DET. RTU-12
E11
F39 C4X4.5
( RTU-12 )
DET. RTU-5
E11
F40 C4X4.5
( RTU-5 )
TJ
C
28
H
SS6X6X1
4/
B134 W16X26 (-338/ )
16"_OWSJ
16"_OWSJ
16"_OWSJ
16"_OWSJ
16"_OWSJ
B145W8X18
B140 W14X22
6'-8 5'-9
SLOPEDOWNSLOPEDOWN
3'-4
SLOPEDOWN
F37 C4X4.5
( RTU-12 )
3'-4
5'-9 5'-9
ROOF lLOW POINT -3
U/S DECK EL= 126'-10 12/
18'-2
LOOSE DECK L LIN LENGTH= 28'-2 18/
20'-0
M2 LOOSE DECK
L4X4X14/ FIELD CUT
& WELD TO SUIT
B131W14X22
B131W14X22
B138 W14X22
16"_OWSJ
W14X22
B147W14X22
B141 W14X22
1'-11 6'-5 3'-6
3'-105'-4
4'-2
11'-10 10'-1
1'-2
20'-0
F7
C
O
L
BEN
T
H
SS5X5X3
8/
F9
C
O
L
BEN
T
H
SS5X5X3
8/
H
SS5X5X3
8/
(F9
)
C
24
H
SS5X5X3
16
/
B66W14X22
B85W14X22
B57 W8X10
B72 W8X10
B123 W14X22 (-338/ )
16"_OWSJ
16"_OWSJ
B100 W14X22 (-338/ )
B89 W8X10
B77 W14X22
1'-1 5'-1 5'-0 5'-0 5'-0
3'-8 21'-2
3'-107
1'-10
23'-0
CANOPY ABOVE
SEE DWG E9
C
E2
C
30
H
SS5X5X3
8/
C
29
H
SS5X5X3
16
/
F11
C
O
L
BEN
T
H
SS5X5X3
8/
H
SS5X5X3
8/
(F11
)
B139W14X22
FIELD NOTE: THIS
CONN ON WEST SIDE
CANOPY BELOW
SEE DWG E8
1012/
3
2'-6 7
1012/
EL. +128'-0
HSS4X4X316/
SHOP WELDED
TO BEAM
DECK L4X4X14/
SHOP WELDED
TO BEAM
SEE PLAN FOR
SIZE & MARK
SEE PLAN FOR
SIZE & MARK
CANOPY FRAMING
SEE DWG Exx
CUSTOMER:
DRAWN BY: DATE: (D/M/Y)
PROJECT:
DWG#
CANBIAN
BW 25/10/13
ROYAL NORTH CENTER
E5
CHECKED BY:DATE: (D/M/Y)
11/04/13IC3D
REV#
0HOLES: 13/16" Ø U.N.O.
PAINT: SSPC-SP3,SHOP GREY PRIMER JOB#
1112
ALL STEEL CRAFT
PHONE: (780) 478-6668 FAX: (780) 478-6677
FABRICATORS LTD.
0 ISSUED FOR CONSTRUCTION 25/11/13
A ISSUED FOR APPROVAL 31/10/13
REV DESCRIPTION DATE BY
1
B
B
A
A
ED
C
C
F
E
E
1
D
3
4
D
1
127'-1"1/2
A - A
1
127'-1"1/2
B - B
1
127'-1"1/2
C - C
113'-8
D - D
113'-8
C - C
113'-8
1
E - E
SEE DWG E2 FOR TYP SECTIONS & DETAILS
CUST REF DWG: S9 & S4 R0
6'-5
20'-0
B109 W8X18
TOS EL= 131'-8
B55W8X18
B74W8X10
H
SS4X4X1
4/
C
14
B91W8X10
B101W8X10
B101W8X10
B101W8X10
H
SS4X4X1
4/
C
23
B78 W8X18
TOS EL= 131'-1012/
H
SS5X5X3
8/
(C
30
)
B101W8X10
H
SS4X4X1
4/
C
58
3'-8 2'-9 6'-5
1'-11 20'-0
9'-2
5'-04'-2
SLOPEDOWN
F20 SEE DWG E9
NOTES:
1) TOS ELEV= 131'-1012/ @ HIGH POINT
2) ALL BOLTS 34/ A325 U/NOTED
HIGH ROOF FRAMING PLAN
A
E2
A
E2
H
SS5X5X3
8/
(F9
)
H
SS5X5X3
8/
(F7
)
B113 W14X22
TOS EL= 131'-1012/
5'-11 5'-11 6'-5 6'-5
2'-0
B128W8X18
F21 SEE DWG E9
FIELD NOTE: THIS
CONN ON WEST SIDE
A
E2
74'-2
4'-9
A
E2
A
E2
A
E2
F7
C
O
L
BEN
T
H
SS5X5X3
8/
F9
C
O
L
BEN
T
H
SS5X5X3
8/
H
SS5X5X3
8/
(F9
)
H
SS5X5X3
8/
(F7
)
B81 W8X10
C
15
H
SS3X3X3
8/
B75 W8X10
B67
W8X10
B80W8X10
1'-27
11'-10
4'-1112/
9'-11
1'-93'-7
5'-31516/
SEE E12 FOR
STAIR & H/RAIL
SS1000 C10X15.3
NOTES:
1) TOS ELEV ELEV= 106'-8
2) ALL BOLTS 34/ A325 U/NOTED
NORTH STAIR LANDING PLAN
5'-0
7
710'-0
SEE E13 FOR
STAIR & H/RAIL
NOTES:
1) TOS ELEV ELEV= 106'-8
2) ALL BOLTS 34/ A325 U/NOTED
SOUTH STAIR LANDING PLAN
VERT BRACING
SEE DWG E7
VERT BRACING
SEE DWG eXX
A
E2
A
E2
A
E2
C C
D D
C
16
H
AN
G
ER
H
SS3X3X3
8/
H
SS6X6X3
8/
C
12
H
SS5X5X3
8/
C
11
B73W8X10
B61W8X10
B69 W8X10
C
17
H
AN
G
ER
H
SS3X3X3
8/
B68 W8X10
B70 W8X10
C
18
H
AN
G
ER
H
SS3X3X3
8/
10'-0
3'-11
5'-0 4'-2
B66 W14X22
C14HSS4X4X14/
4'-612/
4'-9
B55 W8X18
3'-10 1'-2
5'-0
4'-7
+131'-8
B175 W8X18
+127'-1
HSS5X5X316/ C24
B109 W8X18
C23HSS4X4X14/
B106 W14X22
SLOPING)
7
5'-0 4'-2
3'-10 1'-2
+131'-1012/
+131'-8
B128 W8X18
(SLOPING)
F21
C58HSS4X4X14/
+127'-1
B106 W14X22
(SLOPING)
C29
4'-7
3'-1
1012/
4'-9
+128'-0
C30
F11
6'-858/338/
B70 W8X10
+106'-8
C18HSS3X3X38/
B92 W18X40
7'-0
+106'-8
C16 HSS3X3X38/
C17 HSS3X3X38/
B69 W8X10
V11 HSS4X4X14/
B87 W16X26
7
7'-0
+106'-8
B67 W8X10
C15HSS3X3X38/
B65 W8X18
CUSTOMER:
DRAWN BY: DATE: (D/M/Y)
PROJECT:
DWG#
CANBIAN
BW 25/10/13
ROYAL NORTH CENTER
E7
CHECKED BY:DATE: (D/M/Y)
IC3D
REV#
0HOLES: 13/16" Ø U.N.O.
PAINT: SSPC-SP3,SHOP GREY PRIMER JOB#
1112
ALL STEEL CRAFT
PHONE: (780) 478-6668 FAX: (780) 478-6677
FABRICATORS LTD.
0 ISSUED FOR CONSTRUCTION 25/11/13
A ISSUED FOR APPROVAL 31/10/13
REV DESCRIPTION DATE BY
127'-1"1/2
113'-8
100'-0
ED
DET. A DET. B
127'-1"1/2
113'-8
100'-0
4 3
100'-0
127'-1"1/2
113'-8
4 3
100'-0
D
DETAIL A
100'-0
DETAIL B
7'-0
14'-7
13'-8
FIELD NOTE:
BRACE CONN PL
ON NS (TYP)
CROSS BRACING @ LINE 4
C17 HSS3X3X38/
C16 HSS3X3X38/
B102 W8X18
V9
HSS4X4X
1 4/
B103 W8X18
6'-8
+106'-8
GRADE BEAM
V8
HSS4X4X
1 4/
5
3'-11
B69 W8X10
13'-512/
B88 W16X26
V9
HSS4X4X
1 4/
5
HSS5X5X38/ C20
V12
HSS4X4X
1 4/
V13 HSS4X4X14/
V11
HSS4X4X 1
4/
5'-5
V10
HSS4X4X 1
4/
HSS5X5X38/ C19
B116 W16X26
B117 HSS7X5X38/
F10 HSS7X5X38/
HSS5X5X316/
B118 W8X18
B97 W8X18
10'-0
10'-0
13'-813'-512/
FIELD NOTE:
BRACE CONN PL
ON NS (TYP)
CROSS BRACING @ LINE E
B105 W16X26
V14HSS4X4X
14/
V4HSS4X4X
14/
B179 W16X26
GRADE BEAM
V15
HSS4X4X1
4/
V5
HSS4X4X1
4/
5
V13
HSS4X4X1
4/
7
V3
HSS4X4X1
4/
HSS6X6X38/ C21
5
7
Z469 PL7 14/ "X157 12/
10'-0 7
7 10'-0
13'-512/
CROSS BRACING @ LINE D
B62 W16X26
B63 W16X26
V1
HSS4X4X1
4/
V5
HSS4X4X1
4/
6'-87'-0
13'-8
+106'-8
V6
HSS4X4X1
4/
5
V2HSS4X4X
14/
V4HSS4X4X
14/
V3
HSS4X4X1
4/
7'-8
B61 W8X10
V7HSS4X4X
14/
5
FIELD NOTE:
BRACE CONN PL
ON NS (TYP)
HSS5X5X38/ C11
HSS4X4X14/ V8
HSS4X4X14/ V11
HSS5X5X38/ C19
CUSTOMER:
DRAWN BY: DATE: (D/M/Y)
PROJECT:
DWG#
CANBIAN
BW 29/10/13
ROYAL NORTH CENTER
E8
CHECKED BY:DATE: (D/M/Y)
IC3D
REV#
0HOLES: 13/16" Ø U.N.O.
PAINT: SSPC-SP3,SHOP GREY PRIMER JOB#
1112
ALL STEEL CRAFT
PHONE: (780) 478-6668 FAX: (780) 478-6677
FABRICATORS LTD.
0 ISSUED FOR CONSTRUCTION 25/11/13
A ISSUED FOR APPROVAL 31/10/13
REV DESCRIPTION DATE BY
A
1
B
DET. B
1
DET. BDET. B
DET. D
DET. A
G
DET. A
DET. C
DET. BDET. BDET. B
JH
DET. D
DET. A
DET. B
DET. B
DET. B
DET. ADET. C
2
3
K
DETAIL A
SEE PLAN FOR ORIENTATION
DETAIL B
SEE PLAN FOR ORIENTATION
DETAIL C
SEE PLAN FOR ORIENTATION
DETAIL D
SEE PLAN FOR ORIENTATION
B1 - B1
D1 - D1
A1 - A1
DETAIL E
SEE PLAN FOR ORIENTATION
E2 - E2
E1 - E1
E2
E2
DETAIL F
SEE PLAN FOR ORIENTATION
CUST REF DWG: S6 R0
SEE DWG E9 FOR HIGH ROOF CANOPIES
5'-6
3'-1 5'-8 5'-8 5'-8 5'-8 5'-1
57'-11
5'-12'-10
6
9'-2
1'-45'-02'-10
30'-10
2'-6 23'-3 5'-1
PL38/ "X3
CANOPY POST BASE PL @ EL. 118'-412/
SEE PLAN ON E3
DET. ADET. BDET. B
NOTES:
1) ALL HSS4X4X316/ U/NOTED
2) ALL BOLTS 34/ A325
NORTH-WEST CANOPY FRAMING @ ELEV. 124'-0
DET. D
DET. C
DET. B
DET. A
H
SS5X5X3
8/
(F4
)
H
SS4X4X3
16
/
(BELO
W
)F4
H
SS4X4X3
16
/
(BELO
W
)B10
H
SS4X4X3
16
/
(BELO
W
)B10
H
SS4X4X3
16
/
(BELO
W
)B10
H
SS4X4X3
16
/
(BELO
W
)F3
H
SS4X4X3
16
/
(BELO
W
)F4
H
SS4X4X3
16
/
(BELO
W
)B3
F17 HSS4X4X316/
7
1'-0
5'-9
56'-2
23'-0
DET. E
NOTES:
1) ALL HSS4X4X316/ U/NOTED
2) ALL BOLTS 34/ A325
NORTH-EAST CANOPY FRAMING @ ELEV. 124'-0
CANOPY POST BASE PL @ EL. 118'-412/
SEE PLAN ON E3
H
SS4X4X3
16
/
(BELO
W
)F14
1'-0
55'-11
3'-12'-10
3'-6
5'-1 5'-9 5'-9 5'-9
H
SS5X5X3
8/
(F13
)
F23 HSS4X4X316/
H
SS4X4X3
16
/
(BELO
W
)F13
H
SS4X4X3
16
/
(BELO
W
)F13
H
SS4X4X3
16
/
(BELO
W
)B152
H
SS4X4X3
16
/
(BELO
W
)B152
H
SS4X4X3
16
/
(BELO
W
)B152
2'-512/
2'-1012/5'-1112/2'-10
5'-9 5'-9 5'-9 5'-9 5'-1
23'-0
DET. F
F25HSS4X4X316/
F24 HSS4X4X316/
H
SS4X4X3
16
/
(BELO
W
)B164
H
SS4X4X3
16
/
(BELO
W
)B161
H
SS4X4X3
16
/
(BELO
W
)B161
H
SS4X4X3
16
/
(BELO
W
)B161
H
SS4X4X3
16
/
(BELO
W
)C
38
24'-81'-512/
26'-112/
6'-1
8'-7
5'-6 3'-1
2'-7
7
4'-10 3'-1
7'-11
2'-96'-66'-76'-76'-512/3'-1
31'-1112/
F26HSS4X4X316/
NOTES:
1) ALL HSS4X4X316/ U/NOTED
2) ALL BOLTS 34/ A325
SOUTH-EAST CANOPY FRAMING @ ELEV. 124'-0
CANOPY POST BASE PL @ EL. 118'-412/
SEE PLAN ON E3
3'-2
2'-27
H
SS4X4X3
16
/
(BELO
W
)F16
H
SS4X4X3
16
/
(BELO
W
)C
39
H
SS4X4X3
16
/
(BELO
W
)F16
H
SS4X4X3
16
/
(BELO
W
)B174
H
SS4X4X3
16
/
(BELO
W
)B174
H
SS4X4X3
16
/
(BELO
W
)C
41
H
SS4X4X3
16
/
(BELO
W
)B166
55
A1
A1
PL38/ "X3
L4X4X38/
L4X4X38/
H
SS4X4X3
16
/
(BELO
W
)
112/434/
B1
B1
PL38/ "X4
PL38/ "X3
H
SS4X4X3
16
/
(BELO
W
)
L4X4X38/
434/ 112/
PL38/ "X3
B1B1
L4X4X38/
H
SS4X4X3
16
/
(BELO
W
)
112/112/
L4X4X38/
PL38/ "X3
D1 D1
212/
U/SIDE ELEV. +124'-0
BOLT 34/ "DIA A325 6
PL38/ "X3
PL38/ "X4
L4X4X38/
HSS4X4X316/
FRAME (SEE PLAN)
212/
HSS4X4X316/
(SEE PLAN)
U/SIDE ELEV. +124'-0
BOLT 34/ "DIA A325 6
PL38/ "X3
L4X4X38/
FRAME (SEE PLAN)
212/
U/SIDE ELEV. +124'-0
PL38/ "X3
L4X4X38/L4X4X38/
FRAME (SEE PLAN)
HSS4X4X316/
(SEE PLAN)
1'-01'-0
116/FRAME
END END
FRAME
3 x BOLT 34/ "DIA A325 512/
H
SS4X4X3
16
/
(BELO
W
)
E1 E1
E2 E2
L4X3X14/
2
116/FRAME
END END
FRAME
116/FRAME
END END
FRAME
2'-0
MAX
2'-0
MAX
116/FRAME
ENDEND
FRAME
3 x BOLT 34/ "DIA A325 512/
L4X3X14/
CUSTOMER:
DRAWN BY: DATE: (D/M/Y)
PROJECT:
DWG#
CANBIAN
BW 30/10/13
ROYAL NORTH CENTER
E10
CHECKED BY:DATE: (D/M/Y)
IC3D
REV#
0HOLES: 13/16" Ø U.N.O.
PAINT: SSPC-SP3,SHOP GREY PRIMER JOB#
1112
ALL STEEL CRAFT
PHONE: (780) 478-6668 FAX: (780) 478-6677
FABRICATORS LTD.
0 ISSUED FOR CONSTRUCTION 25/11/13
A ISSUED FOR APPROVAL 31/10/13
REV DESCRIPTION DATE BY
ELEVATOR FRAME ISOMETRIC
(LOOKING SOUTH-EAST)
ELEVATOR FRAME ISOMETRIC
(LOOKING NORTH-EAST)
127'-1"1/2
113'-8
100'-0
2
EAST ELEVATION
(LOOKING WEST)
DET. A
127'-1"1/2
113'-8
100'-0
2
WEST ELEVATION
(LOOKING WEST)
DET. B
127'-1"1/2
113'-8
100'-0
D
NORTH ELEVATION
(LOOKING NORTH)
127'-1"1/2
113'-8
100'-0
D
SOUTH ELEVATION
(LOOKING NORTH)
113'-8
2
DETAIL A / E10
113'-8
2
DETAIL B / E10
HSS5X5X38/
TYP U/NOTED
TOS EL. 127'-078/
EAST
W8X18
W8X18
W8X18
F8HSS5X5X316/
HSS5X5X316/
W8X18
W8X18
W8X18
SOUTH
HSS5X5X316/
HSS5X5X316/
TOS EL. 127'-0916/
TOS EL. 127'-112/
TOS EL. 127'-112/
W8X18
W8X18
W8X10
TOS EL. 127'-112/
M6 LADDER
SEE DWG E14
WESTNORTH
HSS5X5X316/
HSS5X5X316/
HSS5X5X316/
F8HSS5X5X316/
F34 C4X4.5
( RTU-14 )
SEE DWG E11
TOS EL. 127'-078/
TOS EL. 127'-112/
TOS EL. 127'-0916/
W8X18
W8X18
W8X18
W8X18
W8X10
W8X18
W8X18
W8X18
W8X18
5'-3
9'-0
5'-3
8'-10
13'-512/
F34 C4X4.5
DET. A
W8X18
EL.+127'-01116/
B83 W8X10
B94 W18X40B84 W8X10
3'-4
434/
6
8'-65'-2
13'-8
2- 12/ x5 WEDGE BOLTS
POWER FASTERNERS OR EQUIV.
3 GA 312/ EMBEDMENT
58/
W8X18
EL.+127'-078/
B85 W14X22
5
338/
5
338/
1'-134/
(SIM.)
B82 W8X10
B95 W16X26
6
6'-1112/
DET. B
6'-812/6'-4716/7'-1116/
W8X18
W8X18
B65 W8X18
B66 W14X22
HSS6X6X14/C13
(SIM.)
B33 W18X40
B49 W16X26
6
58/
EL.+127'-078/
F8HSS5X5X316/
W8X18
W8X18
6'-4716/
78/
W8X18
EL.+127'-058/
6'-812/6'-1112/
6
7'-1116/
6'-5
W8X18
1'-134/
212/ 834/
338/
3212/
HSS5X5X316/
W18X40 B94
W8X10 B83
3212/
212/ 534/
1'-134/
W8X10 STUB
HSS6X6X14/ C13
CUSTOMER:
DRAWN BY: DATE: (D/M/Y)
PROJECT:
DWG#
CANBIAN
BW 25/11/13
ROYAL NORTH CENTER
E11
CHECKED BY:DATE: (D/M/Y)
IC3D
REV#
0HOLES: 13/16" Ø U.N.O.
PAINT: SSPC-SP3,SHOP GREY PRIMER JOB#
1112
ALL STEEL CRAFT
PHONE: (780) 478-6668 FAX: (780) 478-6677
FABRICATORS LTD.
0 ISSUED FOR CONSTRUCTION 29/11/13 ISSU
A ISSUED FOR APPROVAL 25/11/13 BW
REV DESCRIPTION DATE BY
5'-612/
63'-4
3'-012/
5'-11
DET. C
DET. A
(TYP U/N)
F43 C4X4.5
( RTU-8 )
18"_OWSJ
18"_OWSJ
18"_OWSJ 18"_OWSJ
B167 W16X36
F46 C4X4.5
( RTU-8 )
DETAIL RTU-8
(DWG. E3 )
3'-012/
3'-42'-212/
6'-2
DET. A
(TYP U/N)
16"_OWSJ
16"_OWSJ
F27C4X4.5
(RTU-1)
DETAIL RTU-1
E3
5'-612/
63'-4
3'-012/
4'-6
DET. C
DET. B
DET. BDET. B
DET. A
(TYP U/N)
F41 C4X4.5
( RTU-6 )
B150W14X22
B155W14X22
18"_OWSJ
B154 W18X40
18"_OWSJ
F44 C4X4.5
( RTU-6 )
DETAIL RTU-6
(DWG. E3 )
5'-612/
63'-4
3'-012/
5'-9
DET. A
(TYP U/N)
DET. C DET. B
DET. B
DET. B
B159 W16X36
18"_OWSJ
18"_OWSJ
B157W14X22
B157W14X22
F42 C4X4.5
( RTU-7 )
F45 C4X4.5
( RTU-7 )
DETAIL RTU-7
(DWG. E3 )
5'-612/3'-012/
6'-8 5'-9
3'-4
DET. A
(TYP U/N)
DET. E
DET. E
F36 C4X4.5
( RTU-13 )
F38 C4X4.5
( RTU-13 )
DETAIL RTU-13
(DWG. E4 )
5'-612/
3'-012/
3'-4
6'-8 5'-9
DET. B
DET. B
DET. D
DET. DDET. A
(TYP U/N)
F39 C4X4.5
( RTU-12 )
F37 C4X4.5
( RTU-12 )
16"_OWSJ
B106W14X22
B131W14X22
DETAIL RTU-12
(DWG. E4 )
5'-612/
2'-212/3'-4
3'-012/
6'-8
DET. A
(TYP U/N)
16"_OWSJ
16"_OWSJ
F35 C4X4.5
( RTU-4 )
DETAIL RTU-4
(DWG. E4 )
5'-612/
2'-212/3'-4
3'-012/
5'-9
DET. A
(TYP U/N)
F40 C4X4.5
( RTU-5 )
16"_OWSJ16"_OWSJ
DETAIL RTU-5
(DWG. E4 )
3'-6
6'-11
2'-2
DET. A
(TYP U/N)
DET. B
DET. B
F8W8X18
16"_OWSJ
F34 C4X4.5
( RTU-11 )
DETAIL RTU-11
(DWG. E4 )
3'-012/
5'-612/
3'-4
5'-9 5'-9
DET. E
DET. E
DET. A
(TYP U/N)
16"_OWSJ
F32 C4X4.5
( RTU-10 )
F29 C4X4.5
( RTU-10 )
16"_OWSJ
16"_OWSJ
DETAIL RTU-10
(DWG. E4 )
5'-612/
3'-42'-212/
3'-012/
5'-9
DET. A
(TYP U/N)
16"_OWSJ 16"_OWSJ
F33 C4X4.5
( RTU-3 )
DETAIL RTU-3
(DWG. E4 )
3'-012/
5'-612/
3'-4
5'-9 5'-9
DET. D
DET. DDET. B
(TYP U/N)
B44W14X22
F31 C4X4.5
( RTU-9 )
F30 C4X4.5
( RTU-9 )
B35W14X22
B43W14X22
DETAIL RTU-9
(DWG. E4 )
3'-012/
5'-612/
3'-42'-212/
5'-9
F28 C4X4.5
( RTU-2 )
DET. A
(TYP U/N)
16"_OWSJ
16"_OWSJ
DETAIL RTU-2
(DWG. E4 )
6
14/ 14/
TYP
C4X4.5
SEE PLAN C4X4.5
SEE PLAN
2- L2-12/ X2-12/ X516/ 2- L2-12/ X2-12/ X516/
SEE PLAN
DETAIL C
21116/ 4516/
614/ 1316/
C4X4.5 RTU FRAME
SEE PLAN FOR MARKS
JOIST TOP CHORD
(BY OTHERS)
14/
L7X4X38/ x 5
DETAIL A
312/
C4X4.5
SEE PLAN
SEE PLAN
L5X5X38/ x 5
14/
DETAIL B
312/ 312/
14/
C4X4.5
SEE PLAN
C4X4.5
SEE PLAN
L5X3X38/L5X3X38/
SEE PLAN
DETAIL D
4 4
318/ 318/
516/
60°
PP
14/
14/
14/
14/
L6X4X38/
L6X4X38/
C4X4.5
SEE PLANC4X4.5
SEE PLAN
JOIST TOP CHORD
(BY OTHERS)
DETAIL E
CUSTOMER:
DRAWN BY: DATE: (D/M/Y)
PROJECT:
DWG#
CANBIAN
BW 25/11/13
ROYAL NORTH CENTER
E14
CHECKED BY:DATE: (D/M/Y)
IC3D
REV#
0HOLES: 13/16" Ø U.N.O.
PAINT: SSPC-SP3,SHOP GREY PRIMER JOB#
1112
ALL STEEL CRAFT
PHONE: (780) 478-6668 FAX: (780) 478-6677
FABRICATORS LTD.
0 ISSUED FOR CONSTRUCTION 29/11/13 ISSU
A ISSUED FOR APPROVAL 25/11/13 BW
REV DESCRIPTION DATE BY
A
A
A - A
B - B
C - C
5'-6
M6 ACCESS LADDER
FRAME F8
1'-6 +/- FIELD LOCATE
9@1'-06
9'-6
ELEVATOR PIT ACCESS LADDER
CC
BB
LAG SCREW W/1/2 DIA SCREWS
INTO WOOD BLOCKING (BY OTHERS)
12/ X312/ WEDGE BOLT
(4 REQ'D IN CONC)
812/
JANITOR ROOM @ LINE 3
(LOOKING SOUTH)
FIN 2ND FLOOR
ROOF HATCH ACCESS LADDER
BB
M7 ACCESS LADDER
T.O. LADDER
T.O. RUNG
+128'-812/
+127'-112/
16"_OWSJ
+128'-0
+114'-0
1'-212/4'-04'-02'-32'-6
1'-5
(EST.T.O.PARAPET)
6516/CLEAR
2'-91316/ +/- (EST.)
5'-3 8'-5
14@1'-0
1'-712/10@1'-0
1'-112/
ONE CAGED LADDER @ GRID G/2
ONE CAGED LADDER @ GRID B/2
SLOPED ROOF
INSULATION
M3 CAGED LADDER
ROD34/
T.O. RUNG
+130'-0
514/ 2'-0 514/
1'-0
1'-412/
2'-03'-13'-12'-01112/
1'-0 1'-0
10 10
712/10'-64'-0
SIM. (LOOKING EAST)
AS SHOWN (LOOKING WEST)
U/SIDE DECK
T.O. PARAPET
+118'-412/
+133'-6
+119'-0
+129'-6
M4 L8X4X12/
2
1'-114/
2'-714/ 1'-1112/
42'-012/
612/1'-01'-0
714/ 9 714/
6 3
10'-6638/
8'-612/5'-1112/
M5 L8X4X12/
FIELD NOTE:
M9 & M10 FOR
LADDER @ LINE G
ADD CONN'S TO STUD
WALL/PARAPET AS REQ'D
(BY OTHERS)
Z BAR CONNECTORS
BY OTHERS
14/
3 SIDES
CHK`D PL38/ "X22 14/
612/
2'-012/
134/134/
1'-9
BENT PL38/ X4
LAG SCREW W/1/2 DIA SCREWS
INTO WOOD BLOCKING (BY OTHERS)
(LADDER LOCATION)
612/
1'-6
M6
CUSTOMER:
DRAWN BY: DATE: (D/M/Y)
PROJECT:
DWG#
CANBIAN
BW 18/10/13
ROYAL NORTH CENTER
E2
CHECKED BY:DATE: (D/M/Y)
IC3D
REV#
0HOLES: 13/16" Ø U.N.O.
PAINT: SSPC-SP3,SHOP GREY PRIMER JOB#
1112
ALL STEEL CRAFT
PHONE: (780) 478-6668 FAX: (780) 478-6677
FABRICATORS LTD.
0 ISSUED FOR CONSTRUCTION 25/11/13
A ISSUED FOR APPROVAL 31/10/13
REV DESCRIPTION DATE BY
1
2
3
4
6
DCB
5
GFE
SECT. A / E2
SECT. B / E2
DETAIL A
SECT. C / E2
DETAIL B
B1 - B1
SECT. C / E2
TYP SHEAR PL CONN ORIENTATION
TYP BEAM TO COL CONNTYPICAL DECK ANGLE SPLKICE DETAILS
CUST REF DWG: S4 R0
7
2'-78'-024'-824'-84'-1
7
7
A
C
2
H
SS5X5X3
16
/
C
6
H
SS5X5X3
16
/
C
33
H
SS6X6X1
4/
C
32
H
SS5X5X3
16
/
H
SS5X5X3
8/
(F13
)
F13
C
O
L
BEN
T
H
SS5X5X3
8/
NOTES:
1) TOP OF STEEL ELEV= 113'-8 U/ NOTED
(-338/ ) FOR JOIST SHOE DEPTH
2) ALL BOLTS 34/ A325 U/NOTED
3) SEE JOIST DWG'S FOR JOIST DETAILS
2ND FLOOR PLAN
3'-10
LOOSE DECK L LIN LENGTH= 45'-6 12/
LOOSE DECK L LIN LENGTH= 18'-10
15'-214'-3
10'-134/5'-014/
19'-6
8'-010'-0
4'-9
25'-3
24'-8
3'-212/ 3'-212/ 3'-6116/
23'-0
R1004 PIPE1-14/ STD
SS1000 C10X15.3
A
A
C
13
H
SS6X6X1
4/
C
11
H
SS5X5X3
8/
C
10
H
SS5X5X3
16
/
18"_OWSJ
F8
H
SS5X5X3
16
/
H
SS5X5X3
8/
(F7
)
18"_OWSJ
B98 W8X18
18"_OWSJ
18"_OWSJ
3'-10
25'-3
7'-0
24'-8
7'-08'-010'-0
718'-0
C
3
H
SS6X6X1
4/
C
4
H
SS6X6X1
4/
B13W8X18
B37 W16X26
B33 W18X40 (-338/ )
14"_OWSJ
14"_OWSJ
3'-10 3'-10
A
C
5
H
SS6X6X1
4/
B17W8X18
B33 W18X40 (-338/ )
18"_OWSJ
18"_OWSJ
7
B
TJ
TJ
TJ
C
8
H
SS6X6X1
4/
C
7
H
SS5X5X3
16
/
M2 LOOSE DECK
L4X4X14/ FIELD CUT
& WELD TO SUIT
14"_OWSJ
14"_OWSJ
14"_OWSJ
14"_OWSJ
14"_OWSJ
B50 W16X26
B33 W18X40 (-338/ )
M2 LOOSE DECK
L4X4X14/ FIELD CUT
& WELD TO SUIT
14"_OWSJ
14"_OWSJ
14"_OWSJ
14"_OWSJ
3'-10 3'-10 3'-10 3'-10 3'-10 3'-10 3'-10 3'-10
TJ
TJ
C
9
H
SS6X6X1
4/
18"_OWSJ
18"_OWSJ
18"_OWSJ
18"_OWSJ
18"_OWSJ
B33 W18X40 (-338/ )
18"_OWSJ
18"_OWSJ
18"_OWSJ
18"_OWSJ
LOOSE DECK L LIN LENGTH= 20'-9
21'-2
23'-0
H
SS5X5X3
8/
(F4
)
F5
C
O
L
BEN
T
H
SS5X5X3
8/
H
SS5X5X3
8/
(F5
)
B21W8X18
B29 W16X26 (-338/ )
M2 LOOSE DECK
L4X4X14/ FIELD CUT
& WELD TO SUIT
18"_OWSJ
18"_OWSJ
18"_OWSJ
18"_OWSJ
18"_OWSJ
18"_OWSJ
W14X22
(-338/ )
M1 DECK
L4X4X14/F4
C
O
L
BEN
T
H
SS5X5X3
8/
B46 W16X26 (-338/ )
M2 LOOSE DECK
L4X4X14/ FIELD CUT
& WELD TO SUIT
18"_OWSJ
18"_OWSJ
18"_OWSJ
18"_OWSJ
5'-6
7
B9 HSS7X5X38/
TOS EL= 111'-812/
SEE DWG E6
1'-10
3'-5
DET. A
B
LOOSE DECK L LIN LENGTH= 14'-4
4'-0
4'-0
3'-11
14'-7
M7 LADDER
SEE DWG E14
M2 LOOSE DECK
L4X4X14/ FIELD CUT
& WELD TO SUIT
C
16
H
AN
G
ER
H
SS3X3X3
8/
C
19
H
SS5X5X3
8/
B87 W16X26 B116 W16X26B102 W8X18
SEE DWG E13 FPR
STAIRS & HANDRAIL
A
B58W8X18
A
B
TJ
C
12
H
SS6X6X3
8/
B62W16X26
C
18
H
AN
G
ER
H
SS3X3X3
8/
B92 W18X40 (-338/ )
2'-812/ 2'-812/ 4'-0 4'-0
5'-5
A
C
20
H
SS5X5X3
8/
C TJ
C
21
H
SS6X6X3
8/
B119 W18X40 (-338/ )
B97W8X18
B104W8X10
B105W16X26
B111W8X10
B111W8X10
4'-0
3'-4
15'-6
ELEVATOR
FRAME F8
SEE DWG E10
TJ
TJ
C
22
H
SS6X6X1
4/
18"_OWSJ
18"_OWSJ
B83 W8X10
B120 W18X40 (-338/ )
B94 W18X40 (-338/ )
18"_OWSJ
18"_OWSJ
18"_OWSJ
18"_OWSJ
18"_OWSJ
18"_OWSJ
W8X18
W8X18
W8X18
W8X18
B84W8X10
B71W8X10
B79 W8X18
B96W12X19
B96W12X19
4'-0 4'-0 4'-0
3'-5
4'-0 4'-0 4'-0
3'-4
4'-0 4'-0 3'-10 3'-10 3'-10 3'-10 3'-10 3'-10
72'-0
A
CTJ
B111W8X10
C
27
H
SS6X6X1
4/
C
31
H
SS5X5X3
16
/
C
26
H
SS5X5X3
16
/
C
25
H
SS5X5X3
16
/
B132 W16X26
B135 W18X40 (-338/ )
B126W8X10
B111W8X10
B129W8X10
B124 W8X18
B129W8X10
B129W8X10
B129W8X10
B129W8X10
B58W8X18
B21W8X18
4'-0 4'-0 3'-10 3'-10 3'-10 3'-10 3'-10 3'-10
TJ
TJ
18"_OWSJ
C
28
H
SS6X6X1
4/
B33 W18X40 (-338/ )
18"_OWSJ
18"_OWSJ
18"_OWSJ
18"_OWSJ
18"_OWSJ
18"_OWSJ
18"_OWSJ
B21W8X18
LOOSE DECK L LIN LENGTH= 18'-2
20'-0
20'-0
B56 W8X18
B90W16X26
B107W16X26
B122 W16X26 (-338/ )
M2 LOOSE DECK
L4X4X14/ FIELD CUT
& WELD TO SUIT
18"_OWSJ
18"_OWSJ
B76 W8X18
W14X22
W14X22
C
30
H
SS5X5X3
8/
C
29
H
SS5X5X3
16
/
F11
C
O
L
BEN
T
H
SS5X5X3
8/
H
SS5X5X3
8/
(F11
)
M2 LOOSE DECK
L4X4X14/ FIELD CUT
& WELD TO SUITB177 W16X26 (-338/ )
18"_OWSJ
18"_OWSJ
18"_OWSJ
18"_OWSJ
W14X22
(-338/ )
18"_OWSJ
W14X22
11'-10 10'-1
1'-11 9'-11
20'-0
C
AA
B99 HSS5X5X14/
F7
H
SS5X5X3
8/
F9
H
SS5X5X3
8/
H
SS5X5X3
8/
(F9
)C
24
H
SS5X5X3
16
/
B65
W8X18
C
15
H
AN
G
ER
H
SS3X3X3
8/
1'-24'-2
LOOSE DECK L LIN LENGTH= 20'-9
1'-10
3'-8 21'-2
2'-0 21'-0
77
23'-0
B
DET. B
3'-6
B151 HSS7X5X38/
3
SEE PLAN FOR
SIZE & MARK
DECK L4X4X14/
SHOP WELDED
TO BEAM
3
338/
SEE PLAN FOR
SIZE & MARK
OWSJ (BY OTHERS)
M2 LOOSE DECK L4X4X14/
SEE PLAN FOR
LIN LENGTH REQ'D
FIELD CUT FROM STOCK
LENGTHS AS REQ'D
3
M2 LOOSE
DECK L4X4X14/
F5 W14X22
WT4X9
HSS BRACE
M1 DECK L4X4X14/
CUT TO FIT AROUND
HSS BRACE
338/
10
SEE PLAN FOR
SIZE & MARK
OWSJ (BY OTHERS)
M2 LOOSE DECK L4X4X14/
SEE PLAN FOR
LIN LENGTH REQ'D
FIELD CUT FROM STOCK
LENGTHS AS REQ'D
7
212/ 212/
C
29
W14X22 ( F11 )
B1
B1
3
7 3
514/
C29
W14X22 ( F11 )
338/
14/
OWSJ (BY OTHERS)
SEE PLAN FOR
SIZE & MARK
SEE PLAN FOR
SIZE & MARK
SHEAR PL ON EAST & SOUTH
BEAM WEB FACE (TYP U/ NOTED)
212/
5@3-34/A325NW18
4@3-34/A325NW16
3@3-34/A325NW12W14
2@3-34/A325NW8
14/
14/
PL38/ "X4
14/JOISTDEPTH
112/
3
38/
2
116/
338/
@ ROOF LEVELS
2 x BOLT 34/ "DIA A325 214/
4" GA
2 x BOLT 34/ "DIA A325 214/
4" GA
TIE JOIST TYP DETAILTJ
L4X4X14/ OWSJ (BY OTHERS)
SEE PLAN FOR
SIZE & MARK
PL14/ "X6
L6X4X12/ X 7
L6X4X12/ X 7
338/
116/
14/JOISTDEPTH
38/
2
@ INTERMEDIATE LEVELS
TIE JOIST TYP DETAILTJ
SEE PLAN FOR
SIZE & MARK
2 x BOLT 34/ "DIA A325 214/
4" GA
2 x BOLT 34/ "DIA A325 214/
4" GA
PL14/ "X6
L6X4X12/ X 7
L6X4X12/ X 7
OWSJ (BY OTHERS)
DECK SUPPORT
L3X3X38/ ON OPEN
FACE OF COLUMN
AS REQ'D (TYP)
M2 LOOSE DECK
L4X4X14/ FIELD CUT
& WELD TO SUIT
ALYERNATE SPLICE
PREFERRED SPLICE
CTR'D ON SUPPORT
QTY. SITE BOLTS LENGTH
3/4"Ø A325N BOLT8 1 3/4"
3/4"Ø A325N BOLT10 2"
0 ISSUED TO SHOP 15/11/13 BW
A ISSUED FOR APPROVAL 31/10/13 BW
REV DESCRIPTION DATE BY
ONE - BEAM - B46
CUSTOMER:
DRAWN BY: DATE: (D/M/Y)
PROJECT:
DWG#
CANBIAN
21/10/13
ROYAL NORTH CENTER
B46
CHECKED BY:DATE: (D/M/Y)
REV#
0HOLES: 13/16" Ø U.N.O.
PAINT: SSPC-SP3,SHOP GREY PRIMER JOB#
1112
ALL STEEL CRAFT
PHONE: (780) 478-6668 FAX: (780) 478-6677
FABRICATORS LTD.
MARK QTY DESCRIPTION LENGTH WEIGHT REMARKS MATL ABM#
B46 1
B46 1 W16X26 18'-8" 489 350W
0BEAM
Z63
TOTAL WEIGHT THIS DRAWING 489
GRID LOC T.O.S. ELEVATIONREF DWGQTY
C-D/1 113'-4"5/8E21
3333
3333
(-312/ ) W16X26 x 18'-8 (-312/ )
112/
112/
0
18'-5
18'-612/
AA B46
112/
1'-612/
1'-612/
0 4
1'-1012/
3'-6
5'-412/
4
5'-812/
3'-6
9'-212/
4
9'-612/
3'-6
13'-012/
4
13'-412/
3'-6
16'-1012/
4
17'-212/
1'-512/
18'-8
B46
A - A
QTY. SITE BOLTS LENGTH
3/4"Ø A325N BOLT6 1 3/4"
0 ISSUED TO SHOP 15/11/13 BW
A ISSUED FOR APPROVAL 31/10/13 BW
REV DESCRIPTION DATE BY
ONE - BEAM - B66
CUSTOMER:
DRAWN BY: DATE: (D/M/Y)
PROJECT:
DWG#
CANBIAN
22/10/13
ROYAL NORTH CENTER
B66
CHECKED BY:DATE: (D/M/Y)
REV#
0HOLES: 13/16" Ø U.N.O.
PAINT: SSPC-SP3,SHOP GREY PRIMER JOB#
1112
ALL STEEL CRAFT
PHONE: (780) 478-6668 FAX: (780) 478-6677
FABRICATORS LTD.
MARK QTY DESCRIPTION LENGTH WEIGHT REMARKS MATL ABM#
B66 1
B66 1 W14X22 18'-10 5/8" 419 350W
0BEAM
Z92
L431 2 L4X3X3/8 5 1/2" 8 300W
P48 2 PL3/8"X2 1/4" 1'-1 1/16" 6 350W
TOTAL WEIGHT THIS DRAWING 433
GRID LOC T.O.S. ELEVATIONREF DWGQTY
D/2-1> 127'-1"1/2E41
333
1
2
W14X22 x 18'-10 58/
114/
2
112/
112/
0
18'-758/
18'-918/
333
L431
14/
3 SIDES
L431
P48
P48
B66
B
B
A
A
8'-918/
8'-918/
0
712/
9'-458/
4'-8
4'-8
0
4'-41116/
9'-01116/
112/112/
L431
L431 P48
P48
B66
258/ 258/
3212/
212/
3212/
L431
L431
B66
A - A
14/
14/
3 SIDES
P48 P48
B66
B - B
SHOP NOTE:
PROVIDE 38/ DIA VENT HOLES IN
TOP & BOTTOM OF COLUMNS
QTY. SITE BOLTS LENGTH
3/4"Ø A325N BOLT4 2 1/4"
GRID LOC REF DWGQTY
B/5 E21
0 ISSUED TO SHOP 15/11/13 BW
A ISSUED FOR APPROVAL 31/10/13 BW
REV DESCRIPTION DATE BY
ONE - COLUMN - C3 CUSTOMER:
DRAWN BY: DATE: (D/M/Y)
PROJECT:
DWG#
CANBIAN
23/10/13
ROYAL NORTH CENTER
C3
CHECKED BY:DATE: (D/M/Y)
REV#
0HOLES: 13/16" Ø U.N.O.
PAINT: SSPC-SP3,SHOP GREY PRIMER JOB#
1112
ALL STEEL CRAFT
PHONE: (780) 478-6668 FAX: (780) 478-6677
FABRICATORS LTD.
MARK QTY DESCRIPTION LENGTH WEIGHT REMARKS MATL ABM#
C3 1
C3 1 HSS6X6X1/4 27'-11 9/16" 499 CS 1E 350W
0COLUMN
Z31
L8 2 L6X4X1/2 7" 19 300W
L10 8 L4X4X1/4 4" 18 300W
L30 2 L3X3X3/8 6" 7 300W
P3 1 PL3/4"X11" 11" 26 350W
P31 1 PL3/8"X4" 1'-0" 5 350W
P44 3 PL3/8"X4" 9" 11 350W
P49 3 PL3/8"X4" 6" 8 350W
P59 1 PL3/16"X5 1/2" 5 1/2" 2 350W
TOTAL WEIGHT THIS DRAWING 594
34/
18'-534/
18'-534/
0
19'-234/
19'-234/
0
14'-034/
14'-034/
0
EL.+99'-1
P3
L10
L10L8
L8
C3 North
L10 L10
L10 L10
L10
L10
B
B
D
D
E
E
F
F
E
E
2
316/
18/
14/512/
234/
214/
22
214/
212/
18/
33
212/
212/
28'-012/ (HSS6X6X14/ x 27'-11916/ )
3
18'-834/
3
18'-1134/
6
19'-834/
7116/
20'-31316/
2'-61516/
22'-1034/
7116/
23'-51316/
3
14'-334/
3'-1058/
18'-238/
3
18'-538/
3
18'-838/
8'-978/
27'-614/
3
27'-914/
512/
CUT SQ
A
A
SEAL
14/
3 SIDES
14/
14/
14/
14/
14/
L30
L30
P49
P31 P44
P44
P49
P49
P59
P44
2
17'-10716/
17'-10716/
0
14'-614/
14'-614/
0
13'-278/
13'-278/
0 P44
P49
P49
P59
P44
L10 L10
L8L8
C3
L10 L10
L10
L10
L10
L10
1'-01516/
18'-1138/
2
18/
212/
212/
18/
18/
22
512/
14/512/
212/
214/
214/
212/
212/
5'-212/
19'-834/
7116/
20'-31316/
2'-61516/
22'-1034/
7116/
23'-51316/
3@3
13'-1178/
4'-938/
18'-914/
3
19'-014/
7'-1118/
26'-1138/
3
27'-238/
3
27'-538/
14/
14/
BUILD UP
AS REQ'D
14/
14/
14/
14/316/
3 SIDES
14/
14/
14/
14/
14/
14/
L30
L30
P3
P49
P31
P44
22
214/
214/
2 2
514/
514/
C3 North
L10
L10
E - E
18/
18/
P59 P44
P49
C3 North
F - F
2
22
18/
18/
18/
P44
P49
P44
L8
C3 North
D - D
18/
18/
P49
P31
C3 North
B - B 4 4
44
4 x 1516/ "Ø
C3
P3
A - A
SHOP NOTE:
PROVIDE 38/ DIA VENT HOLES IN
TOP & BOTTOM OF COLUMNS
QTY. SITE BOLTS LENGTH
0 ISSUED TO SHOP 15/11/13 BW
A ISSUED FOR APPROVAL 31/10/13 BW
REV DESCRIPTION DATE BY
ONE - COLUMN - C19
CUSTOMER:
DRAWN BY: DATE: (D/M/Y)
PROJECT:
DWG#
CANBIAN
24/10/13
ROYAL NORTH CENTER
C19
CHECKED BY:DATE: (D/M/Y)
REV#
0HOLES: 13/16" Ø U.N.O.
PAINT: SSPC-SP3,SHOP GREY PRIMER JOB#
1112
ALL STEEL CRAFT
PHONE: (780) 478-6668 FAX: (780) 478-6677
FABRICATORS LTD.
MARK QTY DESCRIPTION LENGTH WEIGHT REMARKS MATL ABM#
C19 1
C19 1 HSS5X5X3/8 26'-11 5/16" 567 CS 1E 350W
0COLUMN
Z250
L17 1 L4X3X3/8 1'-11 3/4" 17 CUT 3" LEG 300W
L18 1 L4X3X3/8 1'-11 3/4" 17 CUT 3" LEG 300W
L27 1 L4X3X3/8 2'-10 3/4" 25 CUT 3" LEG 300W
L28 1 L4X3X3/8 2'-10 3/4" 25 CUT 3" LEG 300W
P49 3 PL3/8"X4" 6" 8 350W
P58 1 PL3/16"X4 1/2" 4 1/2" 1 350W
P76 1 PL1/2"X9 1/2" 1'-2 1/4" 15 350W
P105 1 PL1"X6" 1'-6 3/4" 32 350W
TOTAL WEIGHT THIS DRAWING 705
GRID LOC REF DWGQTY
D-E/4 E21
1
516/516/
516/516/
412/14/
27'-012/ (HSS5X5X38/ x 26'-11516/ )
13'-012/
13'-012/
0
3
13'-312/
5
CUT SQ
516/
EL.+100'-1
SEAL
A
A P49
P58P49P49
P105
P76
L28
L27
L18
L17
C19 North
C
C
B
B
316/
212/
912/
912/
0
55
212/
412/
18/
212/
12
1038/
3
13'-012/
13'-012/
0
3
13'-312/
13'-212/
26'-6
3
26'-9
14/
3 SIDES
14/
14/
14/
3 SIDES
516/
516/
14/
14/
P49
P58
P49
P49
P105
P76
L28
L27
L18
L17
C19
11516/538/
214/
111316/
10'-6316/
11'-6
3
11'-9
3
12'-0
6
12'-6
3@3
13'-3
5
13'-8
3
13'-11
3
14'-2
10'-912/
24'-1112/
3
25'-212/
3
25'-512/
6
25'-1112/
3@3
26'-812/
3
1
12/
212/
14/412/
4316/
18/
18/
112/58/112/
P49
P49
L28
L27
C19 North
B - B
112/58/112/
18/
P58
P49
L18
L17
C19 North
C - C
734/ 412/ 412/ 2
33
2 x 1 916/ "Ø
C19 North
P76
P105
A - A
QTY. SITE BOLTS LENGTH
GRID LOC REF DWGQTY
B/1> E21
0 ISSUED TO SHOP 15/11/13 BW
A ISSUED FOR APPROVAL 31/10/13 BW
REV DESCRIPTION DATE BY
ONE - FRAME - F4 CUSTOMER:
DRAWN BY: DATE: (D/M/Y)
PROJECT:
DWG#
CANBIAN
27/10/13
ROYAL NORTH CENTER
F4
CHECKED BY:DATE: (D/M/Y)
REV#
0HOLES: 13/16" Ø U.N.O.
PAINT: SSPC-SP3,SHOP GREY PRIMER JOB#
1112
ALL STEEL CRAFT
PHONE: (780) 478-6668 FAX: (780) 478-6677
FABRICATORS LTD.
MARK QTY DESCRIPTION LENGTH WEIGHT REMARKS MATL ABM#
F4 1
F4 1 HSS5X5X3/8 18'-2" 382 CS1E 350W
0FRAME
Z226
L10 12 L4X4X1/4 4" 26 300W
L118 1 W14X22 5'-8" 126 350W Z19
L130 1 W14X22 5'-8" 126 350W Z19
L247 1 HSS4X4X1/4 6'-2 3/8" 71 350W Z41
L261 1 HSS4X4X1/4 7'-9 11/16" 90 350W Z40
L262 1 HSS4X4X1/4 8'-4 7/16" 96 350W Z122
L274 1 HSS4X4X1/4 5'-8" 65 350W Z39
L323 1 L4X4X1/4 6'-0 3/4" 40 300W Z178
L420 1 L3X3X3/8 5" 3 300W
L427 1 HSS4X4X3/16 10 5/16" 8 350W Z230
L487 1 HSS5X5X3/8 26'-11" 566 CS1E 350W Z231
L503 2 HSS4X4X3/16 5'-7 5/16" 99 350W Z11
P18 1 PL1"X6" 1'-1" 22 350W
P19 1 PL1"X7 1/2" 1'-1" 28 350W
P31 2 PL3/8"X4" 1'-0" 10 350W
P44 4 PL3/8"X4" 9" 15 350W
P48 2 PL3/8"X2 1/4" 1'-1 1/16" 6 350W
P49 1 PL3/8"X4" 6" 3 350W
P52 1 PL3/8"X3" 10" 3 350W
P55 3 PL3/16"X3 5/8" 3 5/8" 2 350W
P121 1 PL1/4"X4" 5 3/4" 2 350W
P148 1 PL1/2"X5 3/4" 5 3/4" 5 350W
P154 1 PL1/2"X6" 6" 5 350W
TOTAL WEIGHT THIS DRAWING 1797
B - B
C - C
A - A
E - E
D - D
SHOP NOTE:
PROVIDE 38/ DIA VENT HOLES IN
ENDS OF HSS AS REQ'D
18'-312/ (HSS5X5X38/ x 18'-2")
23'-11
1 12/ 5'-7516/ 316/
10'-1112/
10'-1112/
0
7116/
11'-6916/
5'-101516/
17'-512/
3
17'-812/
3
17'-1112/
434/
5
212/
214/
SHOP NOTE:
GRIND SMOOTH NS & FS
EDGES & AROUND HOLES
P154
P121
L503
14/
14/
L118
L323
L10
L130
L261
L10
L247F4 East L262 L274
P18
P44
316/358/
23'-712/RD
4
33
5'-712/
18'-2
1
4
4
0
8'-4 7
16
/
3 7
8/
13'-012/
13'-012/
0
6'-10
6
658/
658/
0
6'-1
6'-1012/
A A
14/
60°
PP
EL.+100'-1
L420
L10
L247
L10
P48
L10 L10
L10
L261
L130
P49
P44
P18
L274
P19
L262
L487
P44
L10
P52
27'-012/
27'-11
26'-11
3'-81516/
26'-212/
P44L10
L10
L10 L10
38/ (14/ )
44°
PP
38/ (14/ )
44°
PP
38/ (14/ )
46°
PP
14/
BS (TYP)
516/
516/
316/
3 SIDES
14/
BS
(316/ )
PP, BS
14/
TYP
12/ (14/ )
38°
PP
38/ (14/ )
46°
PP
14/
14/
14/
BS, B/E
14/
BS
C
C
B
B
E
E
CUT SQ
CUT SQ
L10
L10
358/
3
614/
23'-712/RD
6'-112/
18/
6'-034/
5'-712/
6'-4
6'-8
6'-318/
12'-1118/
4'-812/
17'-758/
678/
18'-212/
4316/
4
78/
6'-2
38/
3 5
8/
7'-9 11
16
/
2 1
2/
6'-10 4'-812/
6'-138/
6'-8
5'-814/
12'-414/
1'-134/
13'-6
3'-634/
17'-034/
SHOP NOTE:
GRIND SMOOTH NS & FS
EDGES & AROUND HOLES
P154
P55
P55
P121
L503
L503
14/
BS
14/
60°
PP
(316/ )
PP, BS
14/
14/
14/
45°
PP
SEAL
14/
14/
3 SIDES
D
D
14/
14/
14/
14/
14/
14/
TYP
12/ (14/ )
44°
PP
38/ (14/ )
46°
PP
14/
60°
PP
14/
60°
PP
B/E
F4
P48
P31
P31
P44
L118
L32322
111116/12
1 9
16
/
2 1
2/
7
16
/
1 1
2/
1112/
12
34/
5'-5 2516/
14/
5'-7516/ 316/
316/358/316/
3
38/9516/
114/
12/
1
638/
212/
5'-11'-0
12/
22
17'-818/
3@3
18/
214/
212/
212/
638/
18/
12
9516/
4
78/
3
13'-312/
3'-758/
16'-1118/
638/
18'-212/
6
18'-812/
7116/
19'-3916/
2'-61516/
21'-1012/
7116/
22'-5916/
358/316/
1012/
10516/ 316/
12/
278/278/
3
26'-812/
3
26'-512/
18/
212/
P55L427
P148
134/ 134/
412/ 412/
5'-812/412/412/
6'-1
2 x 1 916/ "Ø
4 x 1 916/ "Ø
F4 East
P19
L487
P18
5'-8
18/
18/
P31
L118
P49
L261
L247
L487
F4 East
10'-1112/
10'-1112/
0
17'-512/
17'-512/
0
P19 L10 L10
L10
L10L10
L10
1'-41516/
18'-212/
12/ 1012/
3
17'-812/
3
17'-1112/
3
18'-212/
3
212/
214/
214/
212/
18/
22
316/
212/
214/
SHOP NOTE:
GRIND SMOOTH NS & FS
EDGES & AROUND HOLES
SEAL
14/
14/
L427
P148
L420
P52
P31
P49
P31
P44
L247
L262 L261
L274
L118
L130
L487
P44
P44
L10 L10
L10 L10
7116/
11'-6916/
8116/
12'-258/
3@3
12'-1158/
3'-278/
16'-212/
7116/
16'-9916/
3 3
3'-8
21'-1012/
7116/
22'-5916/
3'-81516/
26'-212/
6
26'-812/
3
26'-1112/
8
27'-712/
212/
358/316/
278/278/
10516/ 316/
278/ 278/
212/278/
18/
18/
L427
P148
P44
P44
6'-034/
614/
534/
212/ 212/
18/
18/
18/
316/
316/
14/
P154
P121
L503
L503
P48
14/
45°
GTSM
316/ 3"@12
316/ 3"@12
P44
F4 East
L420
P48
P31
P44
L323
14/
14/
12/
4'-612/66
312/
55
5'-8
4'-1012/912/
QTY. SITE BOLTS LENGTH
GRID LOC REF DWGQTY
D/2-1 E21
0 ISSUED TO SHOP 15/11/13 BW
A ISSUED FOR APPROVAL 31/10/13 BW
REV DESCRIPTION DATE BY
ONE - FRAME - F8 CUSTOMER:
DRAWN BY: DATE: (D/M/Y)
PROJECT:
DWG#
CANBIAN
30/10/13
ROYAL NORTH CENTER
F8
CHECKED BY:DATE: (D/M/Y)
REV#
0HOLES: 13/16" Ø U.N.O.
PAINT: SSPC-SP3,SHOP GREY PRIMER JOB#
1112
ALL STEEL CRAFT
PHONE: (780) 478-6668 FAX: (780) 478-6677
FABRICATORS LTD.
MARK QTY DESCRIPTION LENGTH WEIGHT REMARKS MATL ABM#
F8 1
F8 1 HSS5X5X3/16 26'-11 9/16" 301 CS1E 350W
0FRAME
Z243
L39 1 L4X4X3/8 4 1/2" 4 CUT ONE LEG 300W
L44 1 HSS5X5X3/16 26'-11 9/16" 301 CS1E 350W Z242
L45 1 HSS5X5X3/16 26'-10 5/8" 300 CS1E 350W Z108
L81 1 W8X18 6'-0" 109 350W Z98
L95 1 W8X18 8'-7" 156 350W Z86
L165 1 W8X18 6'-0 1/16" 109 350W Z101
L166 1 W8X18 6'-0 1/8" 109 350W Z101
L167 1 W8X10 8'-11 3/4" 91 350W Z89
L182 3 W8X18 8'-7" 467 350W Z86
L217 1 HSS5X5X3/8 9'-1 1/4" 191 350W Z114
L218 1 HSS5X5X3/8 8'-1 3/4" 171 350W Z109
L219 1 HSS5X5X3/8 8'-3 5/16" 174 350W Z113
L221 4 HSS5X5X3/8 8'-7" 722 350W Z84
L222 2 HSS5X5X3/8 8'-7 1/2" 363 350W Z110
L223 1 HSS5X5X3/8 8'-2 1/8" 172 350W Z109
L224 1 HSS5X5X3/8 10'-6 13/16" 222 350W Z87
L225 1 HSS5X5X3/8 10'-7 1/16" 223 350W Z88
L226 1 HSS5X5X3/8 10'-6 3/16" 221 350W Z85
L227 1 HSS5X5X3/8 9'-2 3/4" 194 350W Z112
L228 1 HSS5X5X3/8 9'-6 1/2" 201 350W Z111
L229 1 HSS5X5X3/8 10'-6 1/8" 221 350W Z83
L235 4 HSS5X5X3/8 6'-0" 505 350W Z96
L236 2 HSS5X5X3/8 8'-6 3/16" 358 350W Z95
L237 1 HSS5X5X3/8 8'-7 9/16" 181 350W Z102
L238 2 HSS5X5X3/8 8'-7 3/16" 362 350W Z99
L239 2 HSS5X5X3/8 8'-6 7/16" 359 350W Z97
L240 1 HSS5X5X3/8 8'-6 15/16" 180 350W Z100
L430 1 W8X18 6'-0" 109 350W Z98
L431 1 L4X3X3/8 5 1/2" 4 300W
L480 1 HSS5X5X3/16 26'-10 15/16 300 CS1E 350W Z115
P44 2 PL3/8"X4" 9" 8 350W
P49 6 PL3/8"X4" 6" 15 350W
P57 4 PL3/16"X4 5/8" 4 5/8" 5 350W
P107 3 PL3/4"X8 1/2" 8 1/2" 42 350W
P108 1 PL3/4"X8 1/2" 11" 17 350W
P110 1 PL3/8"X6" 9 1/4" 6 350W Z22
TOTAL WEIGHT THIS DRAWING 7473
212/8'-7212/
414/
34/
34/
9'-0
33
16
/
AA
60°
PP
EL.+100'-1
F8 North
P44
P49
L182
L225
(10'-71
16
/
)
L221
L224
(10'-613
16
/
)
L221
L229
(10'-61
8/)
26'-11916/ 316/
HSS5X5X316/ x 26'-11916/
212/
27'-012/
212/
3 26'-614/ 3
13'-034/RD 3 26'-234/
TYP WELD
W8 TO HSS
TYP WELDS
HSS TO HSS
A
A
TYP WELD
HSS TO W8
TYP WELD
HSS TO HSS
14/
14/
L165EL.+113'-8
L166
TYP 4 COL'S
CUT SQ
P57
P57
14/
14/
14/
14/
TYP
14/
14/
B/E
14/
B/E
14/
14/
TYP
38/ (14/ )
54°
PP
B/E
12/ (14/ )
36°
PP
B/E
38/ (14/ )
55°
PP
B/E
12/ (14/ )
35°
PP
B/E
14/
TYP
38/ (14/ )
45°
PP, BS
(TYP)
(38/ )
BS
(TYP)
(14/ )
BS
(TYP)
12/ (14/ )
35°
PP
B/E
38/ (14/ )
55°
PP
B/E
(14/ )
BS
(TYP)
12/ (14/ )
35°
PP
38/ (14/ )
55°
PP
B/E
EL.+127'-112/
FRONT VIEW (WEST SIDE)
E
E
D
D
P49
P49
L44
L182
L226
(10'-63
16
/
)
1 13
16
/
9
16
/
6'-61116/ 13'-2316/ 4116/ 19'-101116/
13'-614/
12
9
12
8916/
12
81316/
12
814/
212/
6
1
2/
11
2/
4
212/
13
16
/
9
16
/
45
16
/
13
8/
23
8/
25
16
/
513
16
/
1
2/
41
8/
17
16
/
5
8/
49
16
/
15
16
/
13'-034/
33
26'-71316/
316/
8'-7
10'-1
1 7
8/
513
16
/
1
2/
212/6'-0212/
414/
61116/
6'-11
6'-5
60°
PP
L236
(8'-6
316/
)
L239
( 8'-6 7
16
/
)
L238
( 8'-7 3
16
/
)
L237
( 8'-7 9
16
/
)
TOP VIEW (NORTH SIDE)
B B
11
16
/
26'-1178/
18/
3 7
16
/
1
16
/
2 11
16
/
2 5
16
/
3 3
8/
1 9
16
/
1
16
/
11
16
/
3 7
16
/
1 1
2/
2 3
8/
2 5
8/
1 16/
2
58/
2
38/
4
12/
1138/
12
1112/
12
1158/
12
12
1158/
27'-012/
L221L221
G G
14/
3 SIDES
SEE FRONT VIEW FOR TYP
WELDS NOT SHOWN
38/ (14/ )
46°
PP
B/E
12/ (14/ )
44°
PP
B/E
38/ (14/ )
46°
PP
B/E
12/ (14/ )
44°
PP
B/E
38/ (14/ )
46°
PP
B/E
12/ (14/ )
44°
PP
B/E
12/ (14/ )
44°
PP
38/ (14/ )
46°
PP
B/E
P57
L182
P44
L182
P44
L167
P57
L431
L480
L165
L81
L235
L235
F8
1
16
/
3
3'-0116/
212/
13'-614/
6'-61116/RD 13'-2316/ 4116/ 19'-101116/
18/
18/
2 5
16
/
2 3
4/
1
116/
3'-03'-0116/
58/
6'-0116/
26'-71316/
18/
18/
12
1 1
2/
112/112/8'-9112/112/
434/
6'-2
6'-2
3'-4
9'-0
48'-44
5'-9
6'-5
4 5'-9 4
2 x 1516/ "Ø
2 x 1516/ "Ø
2 x 1516/ "Ø
2 x 1516/ "Ø
2 x 916/ "Ø
L44 L45
L480
L218
L223
P107
P107
P107
P108L39
P110
F8 North
A - A
112/ 112/
4
112/ 112/
112/ 112/
5'-8
4
112/ 112/
112/ 112/
6'-0
8'-7
9'-0
6'-5
2'-111516/
L95
L182
L480
L45L44
P49
P49L431
P49
P49
D - D
116/
SHOP NOTE:
INSIDE W8 CORNERS
CLIPPED (TYP)
L430
212/
212/
18/
212/
3'-0116/
F8 North
L81
116/
116/
9'-0
1116/1116/
916/ 1316/
278/
278/
278/
278/
8'-1134/
18/316/
316/
316/
316/
L167
L166
L165
G - G
212/ 6'-0 212/
116/
18/
18/
3'-212/ 3'-212/
L182
P57
P57
P57
P49 P49
L45
L44
L167
L166
L165
L182
L480
F8 North
P57
E - E
116/
38/
38/
38/
38/
F8
L81
L182
6'-5
P107
P108
A - A
(SOUTH SIDE)
1
116/
27'-012/
26'-11916/ 78/
L221 L225
L95
L182 L224L221 L226
L221
L227
L221
L228
L222L218
L229
L430
L39
12/ (14/ )
44°
PP
B/E
12/ (14/ )
44°
PP
B/E
P57
P49
P49
L167
L166
L182
L182
SEE TOP VIEW FOR TYP
DIMENSIONS & WELDING
NOT SHOWN
L238
( 8'-7
3 16/
)
L240
( 8'-6
15 16/
)
L239
( 8'-6
7 16/
)
L236
(8'-63
16
/
)
L235(6'-0)
L235(6'-0)
L44
L45
116/
2
5 16/
2
11 16/
61116/
414/
6'-61116/RD 13'-2316/ 4116/ 19'-101116/
3'-03'-018/
6'-018/
18/
3
3 8/
1
1 2/
26'-678/
18/
12
5
L218 3"@12
L45
F - F
8'-414/
8'-414/
0
55'-33'-4
34/
38/
312/
34/
34/
9'-0
14/
14/
38/
P107
B - B
(EAST SIDE)
97
8/
12
51116/
6716/
4'-61516/
26'-11316/
212/
212/
26'-1058/ 316/
26'-101516/
26'-11916/ 516/
26'-1178/
38/
60°
PP
14/
14/
B/E
14/
B/E14/
TYP
14/
316/
P57
P57
P110
P49
P49
P44
P49
P108
L45
L480
L165
L166
L95
L81
L430
L221
L222L218
L223
L238
L239 L240
F
F
F
F
SEE FRONT VIEW FOR TYP
WELDS NOT SHOWN
L227(9'-23
4/)
L228
(9'-61
2/)
L222
L217 ( 9'-1
1 4/ )
L219 ( 8'-3 5
16/ )
3 8/
11
12
6716/
438/
12
518/
1
815
16
/
69
16
/
13
16
/
13
8/
1
2/
91
4/
111
8/
5'-2
13'-614/
8'-10
22'-414/
13'-2316/ 4116/
8'-712/
8'-134/
8'-218/
5
12
1014/
55'-33'-4
13'-034/ 3
13'-034/RD 3
212/
212/
414/
4
L221
L39
14/
14/
38/
45°
PP, BS
38/
60°
PP
(14/ )
BS
(TYP)
14/
14/
12/ (14/ )
25°
PP
B/E
14/
34/ (14/ )
20°
PP
B/E
14/
B/E
14/
B/E
12/ (14/ )
28°
PP
B/E
14/
14/
(14/ )
BS
(TYP)
14/
BS
58/ (14/ )
23°
PP
B/E
14/
14/
TYP
13
16/
713
16
/
5
8/
112/
1516/
91 2/
9 16/
26'-7316/
33
26'-5516/ 3
26'-218/
5
5
8'-7
116/
12
316/
14/
14/
L182
SHOP NOTE:
PROVIDE 38/ DIA VENT HOLES
IN HSS ENDS AS REQ'D
QTY. SITE BOLTS LENGTH
3/4"Ø A325N BOLT7 6"
GRID LOC REF DWGQTY
<A-C/1> E81
0 ISSUED TO SHOP 15/11/13 BW
A ISSUED FOR APPROVAL 31/10/13 BW
REV DESCRIPTION DATE BY
ONE - FRAME - F17 CUSTOMER:
DRAWN BY: DATE: (D/M/Y)
PROJECT:
DWG#
CANBIAN
28/10/13
ROYAL NORTH CENTER
F17
CHECKED BY:DATE: (D/M/Y)
REV#
0HOLES: 13/16" Ø U.N.O.
PAINT: SSPC-SP3,SHOP GREY PRIMER JOB#
1112
ALL STEEL CRAFT
PHONE: (780) 478-6668 FAX: (780) 478-6677
FABRICATORS LTD.
MARK QTY DESCRIPTION LENGTH WEIGHT REMARKS MATL ABM#
F17 1
F17 1 HSS4X4X3/16 31'-1 5/8" 273 MITRE 2E 350W
0FRAME
Z23
L434 1 HSS4X4X3/16 9'-5 5/8" 83 MITRE 2E 350W Z1
L435 1 HSS4X4X3/16 8'-2 5/8" 72 MITRE 2E 350W Z42
L439 1 HSS4X4X3/16 5'-0 13/16" 44 MITRE 1E 350W Z42
L442 1 HSS4X4X3/16 6'-3 13/16" 55 MITRE 1E 350W Z1
L447 1 HSS4X4X3/16 2'-9" 24 350W Z2
L448 5 HSS4X4X3/16 2'-6" 110 350W Z20
L458 1 HSS4X4X3/16 30'-6" 268 350W Z23
L459 1 HSS4X4X3/16 3'-4 5/8" 30 MITRE 2E 350W Z2
L460 1 HSS4X4X3/16 5'-4 5/8" 47 MITRE 2E 350W Z43
L509 9 L4X4X3/8 3" 22 300W
P143 4 PL3/8"X3" 6 1/4" 8 350W Z174
P144 2 PL3/8"X3" 10" 6 350W Z174
P157 1 PL3/8"X3" 7 1/2" 2 350W Z174
P158 4 PL3/8"X4" 7 1/2" 13 350W Z174
TOTAL WEIGHT THIS DRAWING 1059
1'-38'-3
L447
L509
L509
L509
L442
L460
L435
P157
L509
L509
L509
L509
F17 North
L509
L448
L448
L458
L509
B
B
A
A
21'-45'-02'-102
22'-8 5'-3
2 3'-1 5'-8 5'-8 5'-8 5'-8 5'-1
316/
316/
9'-6
12
12
D
D
14/
P158
P143
P143
P143
P143
P144P144
P158
P158 P158
14/
(18/ )
PP, BS
(TYP)
14/
TYP
14/
TYP
316/
PP, BS
(TYP)
316/
TYP
C C
L439
L448
L448
L448
L434
L459
112/434/
31'-2
2'-6
112/434/
55
2'-9
22434/ 112/
112/434/
55
112/112/
25'-12'-102
3'-3RD 8'-11 14'-7 20'-3 25'-11 31'-0
3'-5 22'-4 5'-5
3'-3
L448
L448
L458
L509
L509
L509 L509
L509
L509
L509
L442 L435L439L448L448
L448
L434
C - C
612/
212/
3'-3RD 8'-11 14'-7 20'-3 25'-11 31'-2
4 30'-6 4
1 X (1316/ "x1 116/ ") SLOTS
1 X (1316/ "x1 116/ ") SLOTS
14/
3 SIDES
P158
P143P143P143
P144P144
P158
P158
12/ 6
212/
4116/
P143
P158
L458
L509
L448
D - D
3'-2116/
12/ 6
4 212/
212/
9'-68'-0418/2'-91516/RD
316/6'-31316/42'-64
14/
3 SIDES
14/
3 SIDES
P143
P144
P158
L509
L442
L509
L458
L448
L509
F17 North
A - A
3'-2116/
8'-1418/2'-91516/RD
12/ 6
212/
212/
8'-3
316/5'-01316/42'-6
14/
3 SIDES
P144
1 X (1316/ "x1 116/ ") SLOTS
L439
L460
L509
L509
P157
L509
L458
L448
F17 North
B - B
SHOP NOTE:
GRIND SMOOTH ALL
WELDS & EDGES
QTY. SITE BOLTS LENGTH
GRID LOC REF DWGQTY
B/2 E141
G/2 E141
0 ISSUED TO SHOP 29/11/13 BW
A ISSUED FOR APPROVAL 25/11/13 BW
REV DESCRIPTION DATE BY
2 - CAGED_LADDERS - M3 CUSTOMER:
DRAWN BY: DATE: (D/M/Y)
PROJECT:
DWG#
CANBIAN
BW 25/11/13
ROYAL NORTH CENTER
M3
CHECKED BY:DATE: (D/M/Y)
IC3D
REV#
0HOLES: 13/16" Ø U.N.O.
PAINT: SSPC-SP3,SHOP GREY PRIMER JOB#
1112
ALL STEEL CRAFT
PHONE: (780) 478-6668 FAX: (780) 478-6677
FABRICATORS LTD.
MARK QTY DESCRIPTION LENGTH WEIGHT REMARKS MATL ABM#
M3 2
M3 2 PL1/2"X2 1/2" 14'-6 7/16" 124 350W
0CAGED_LADDERS
L583 16 L8X4X1/2 4" 105 300W
L584 2 ROD3/4" 1'-8 1/2" 5 350W
L585 26 ROD3/4" 1'-8 1/2" 66 300W
P177 2 PL1/2"X2 1/2" 14'-6 7/16" 124 350W
P178 4 PL1/2"X2 1/2" 6'-4 15/16" 109 350W
P179 2 PL3/8"X22 1/4" 1'-11 1/2" 110 CHECKERED PL 300W
P194 14 PL1/4"X2" 5'-11" 141 350W
P195 2 PL1/4"X2" 7'-4 1/2" 25 350W
P196 2 PL1/4"X2" 11'-3 1/2" 38 350W
P197 2 PL1/4"X4" 11'-1 3/4" 76 350W
P198 2 PL1/4"X2" 11'-1 3/4" 38 350W
TOTAL WEIGHT THIS DRAWING 962
1'-1112/2'-714/
714/
114/114/
AA
4'-038/
12'-3
2
1'-9
5'-11
8'-558/RD
5'-1112/
14'-6
1012/
1012/
0
3'-1
3'-1112/
3'-1
7'-012/
2'-0
9'-012/
5'-512/
14'-6
2 2 2 22 22 2
D
D
316/
316/
316/
3 SIDES
F
F
E
E
C
C
BB
14/
3 SIDES
L583
L583
L583
L583
L583
L583
L583
L583
L584
P195
P196
P197
P194
P194
P194
P194
P194
P194
P194
P198
P179
M3
P177
P178
P178
418/ 1'-0 1'-0
10'-6
14/
2 2
2'-512/
14/
114/114/
8'-012/
14/
14/
4
1'-9
14/
R
1
6
558/
558/
0
21'-92
12/1'-812/
A - A
3'-838/
10@1'-0
10'-558/
11316/
10'-7716/
2
2'-0
1316/
G
TYP P195
P196
P197P198L583
L583
L583
L583
L583
L583
L583
L583
L585
L585
L585L584
L585
L585
L585L585
L585
L585
L585
P179
14/1'-812/14/
10'-7716/ 2316/
12
12
2'-51516/ 2316/ 3'-838/
6'-412/
418/ 1'-0 1'-0 11316/
2
2'-0
1'-8
P178
P178
P179
L585 L585
L585
B - B
4'-734/
1'-01
16/
1'-0
116/
434/ 434/
40°
R1'-51
4/
11316/1'-0316/
11'-1112/1'-21'-514/
316/
316/
(TYP)
P197
P194
P194
P194
P194
P194
P194
P194
M3
P177
P178
P178
C - C
2'-1
1'-0116/
1'-01
16
/
1'-01 16/
1'-012/ 1'-012/
1'-01
16/
238/
58/ 1'-9 58/
316/
316/
P196
P179
E1 - E1
10
118/ 1'-8
1'-1014/
E2
E2
E1 E1
P178
P178
P177
M3
P179
CHK'D PL
L585
P194
P194
P194
P194
P194
P194
P194
P196
L585
E - E
1'-11516/
1'-1112/1'-21'-514/
1'-9
112/
134/
316/
316/
1012/ 1012/
1116/1'-11516/
1'-21'-514/
R1'-514/
2'-714/
316/
3 SIDES
P195
P194
P194
P194
P194
P194
P194
P194
M3P177
F - F
R1'-51
4/
1'-012/ 1'-012/
11316/
11'-1112/1'-21'-514/
316/
316/
P194
P194
P194
P194
P194
P194
P194
P198
M3P177
P178
P178
D - D
1'-1112/
14/
14/
L585
L585
P179
E2 - E2
QTY. SITE BOLTS LENGTH
3/4"Ø A325N BOLT8 2 1/4"
0 ISSUED TO SHOP 15/11/13 BW
A ISSUED FOR APPROVAL 31/10/13 BW
REV DESCRIPTION DATE BY
ONE - VBRACE - V11
CUSTOMER:
DRAWN BY: DATE: (D/M/Y)
PROJECT:
DWG#
CANBIAN
24/10/13
ROYAL NORTH CENTER
V11
CHECKED BY:DATE: (D/M/Y)
REV#
0HOLES: 13/16" Ø U.N.O.
PAINT: JOB#
1112
ALL STEEL CRAFT
PHONE: (780) 478-6668 FAX: (780) 478-6677
FABRICATORS LTD.MARK QTY DESCRIPTION LENGTH WEIGHT REMARKS MATL ABM#
V11 1
V11 1 HSS4X4X1/4 16'-1" 184 350W
0VBRACE
Z246
P81 1 PL1/2"X7" 1'-6 15/16" 19 350W
P94 2 PL1/2"X6" 1'-1" 22 350W
P100 2 PL3/16"X1 9/16" 3 5/8" 1 350W
P115 1 PL1/2"X7" 1'-7 1/8" 19 350W
P150 2 PL3/16"X1 9/16" 3 5/8" 1 350W
TOTAL WEIGHT THIS DRAWING 246
GRID LOC REF DWGQTY
D-E/4 E71
2'-71116/
2'-71116/
0
2'-758/
2'-758/3'-6316/
3'-6316/
0
212/
0
16'-1
16'-1
2'-101316/
2'-101316/
RD
6
17'-0
17'-21516/ (HSS4X4X14/ x 16'-1")
33
112/112/
716/51116/51116/716/
11516/318/
318/11516/
1'-4
18/
3915
16/
3
12
1038/
12
134/
3
3
14/
14/
P100
14/
14/ 14/
14/
P81P115
P150
P150
V11
P94
P94
P100
3
212/
512/
214/
2'-91516/
4'-9516/
7'-714/
21516/
7'-1014/
91116/
3'-5516/
NOTCH
3'-1078/
7'-4316/
738/
7'-11916/
NOTCH
214/
3'-812/
3'-8716/
7'-41516/
21516/
7'-71516/
212/
16'-312/
3
16'-612/
91116/
3'-8916/
NOTCH
3'-7116/
7'-358/
738/
7'-11
NOTCH
112/112/
6 316/
618/CUT
916/CUT
14/916/
N/S&F/S
NOTCH
916/CUT
1916/12/1916/
916/
N/S&F/S
NOTCH
316/ 6
618/ CUT
SEAL
P100
P81P115 P150
P150
P100
P94
P94
V11
QTY. SITE BOLTS LENGTH
3/4"Ø A325N BOLT8 2 1/4"
0 ISSUED TO SHOP 15/11/13 BW
A ISSUED FOR APPROVAL 31/10/13 BW
REV DESCRIPTION DATE BY
ONE - VBRACE - V12
CUSTOMER:
DRAWN BY: DATE: (D/M/Y)
PROJECT:
DWG#
CANBIAN
24/10/13
ROYAL NORTH CENTER
V12
CHECKED BY:DATE: (D/M/Y)
REV#
0HOLES: 13/16" Ø U.N.O.
PAINT: JOB#
1112
ALL STEEL CRAFT
PHONE: (780) 478-6668 FAX: (780) 478-6677
FABRICATORS LTD.
MARK QTY DESCRIPTION LENGTH WEIGHT REMARKS MATL ABM#
V12 1
V12 1 HSS4X4X1/4 6'-9 1/8" 78 350W
0VBRACE
Z246
P94 2 PL1/2"X6" 1'-1" 22 350W
P100 4 PL3/16"X1 9/16" 3 5/8" 1 350W
TOTAL WEIGHT THIS DRAWING 101
GRID LOC REF DWGQTY
D-E/4 E71
33
6
3
212/
512/
212/0 6'-9116/
6'-9116/
212/
6'-11916/
3
7'-2916/
6
7'-8116/
(-312/ )7'-11116/ (HSS4X4X14/ x 6'-918/ )(-1'-5116/ )
112/112/
112/112/
14/
14/
P100
P100
P100
V12
P94
P94
P100
916/CUT
916/CUT
1916/12/1916/
1916/12/1916/
6 316/316/ 6
618/CUT618/ CUT
SEAL
P100
P100
P100
P100
P94
P94
V12
CUSTOMER:
DRAWN BY: DATE: (D/M/Y)
PROJECT:
DWG#
CANBIAN
BW 27/01/14
WESTGATE
E1
CHECKED BY:DATE: (D/M/Y)
IC3D
REV#
1HOLES: 13/16" Ø U.N.O.
PAINT: GALVANIZED JOB#
1169
ALL STEEL CRAFT
PHONE: (780) 478-6668 FAX: (780) 478-6677
FABRICATORS LTD.
1 STIARS UPDATED 21/02/14 BW
0 ISSUED FOR CONSTRUCTION 29/01/14 BW
A ISSUED FOR APPROVAL 27/01/14 BW
REV DESCRIPTION DATE BY
R4
R2
ISOMETRIC VIEW
F1
R5
S2
R3
R1
S1
P1
B1
R1
ISOMETRIC VIEW
S2
B1
S1
F1
R5
R2
SHOP NOTE:
1) FULLY WELD ALL PIPE JOINTS
2) GRIND SMOOTH ALL WELDS & EDGES
QTY. SITE BOLTS LENGTH
3/4"Ø A325N BOLT6 2 1/2"
3/4"Ø A325N BOLT2 2"
GRID LOC REF DWGQTY
-/ E21
1 STAIRS UPDATED 21/02/14 BW
0 ISSUED TO SHOP 29/01/14 BW
A ISSUED FOR APPROVAL 27/01/14 BW
REV DESCRIPTION DATE BY
ONE - RAIL - R3 CUSTOMER:
DRAWN BY: DATE: (D/M/Y)
PROJECT:
DWG#
CANBIAN
BW 27/01/14
WESTGATE
R3
CHECKED BY:DATE: (D/M/Y)
IC3D
REV#
1HOLES: 13/16" Ø U.N.O.
PAINT: GALVANIZED JOB#
1169
ALL STEEL CRAFT
PHONE: (780) 478-6668 FAX: (780) 478-6677
FABRICATORS LTD.
MARK QTY DESCRIPTION LENGTH WEIGHT REMARKS MATL ABM#
R3 1
R3 1 PIPE1-1/4STD 8'-6 1/8" 18 A53
0RAIL
L20 15 ROD3/8" 3'-1 1/2" 17 300W
L23 20 ROD3/8" 2'-3 3/8" 17 300W
L36 1 PIPE1-1/4STD 4 5/8" 1 A53
L37 1 PIPE1-1/4STD 4 5/16" 1 A53
L38 1 PIPE1-1/4STD 3'-3 13/16" 7 A53
L41 1 PIPE1-1/4STD 3'-6 11/16" 8 A53
L42 1 PIPE1-1/4STD 2'-9 5/16" 6 A53
L77 1 PIPE1-1/4STD 4'-4 9/16" 9 A53
L78 1 PIPE1-1/4STD 4'-9 3/4" 10 A53
L81 1 PIPE1-1/4STD 3 1/8" 1 A53
L85 1 PIPE1-1/4STD 1'-0 7/16" 2 A53
L86 1 PIPE1-1/4STD 3'-4 13/16" 7 A53
L87 1 PIPE1-1/4STD 3'-6" 8 A53
L88 1 PIPE1-1/4STD 4'-3 5/8" 9 A53
L89 1 PIPE1-1/4STD 6'-8 1/4" 14 A53
L93 1 PIPE1-1/4STD 6 1/8" 1 A53
L97 1 ROD3/8" 2'-4 3/16" 1 300W
L98 1 ROD3/8" 2'-9 3/16" 1 300W
L99 1 ROD3/8" 2'-6 13/16" 1 300W
L100 1 ROD3/8" 2'-4 3/8" 1 300W
P7 1 PL3/8"X2 1/4" 8 1/2" 2 300W
P9 1 PL3/8"X2 1/4" 7 1/2" 2 300W
P10 1 PL3/8"X2 1/4" 7 1/2" 2 300W
P13 1 PL3/8"X2 1/4" 8" 2 300W
TOTAL WEIGHT THIS DRAWING 148
3516/3'-41116/4'-1112/1316/
8'-838/
DET. A
P13
A
A
2 x (1"x1316/ ") SLOTS
L38
L42
L93
L36
L37
R3
P7
17@378/ 26@31316/
2'-0
1116/
4
2'-5
1116/
12
32.13°
712/
118/2'-7516/2'-878/
4'-612/578/
8'-6
1 2/
4'-10
15 16/
6'-7316/ 7'-21316/
1316/ 111116/ 4'-6716/ 4'-11516/ 4'-11516/ 1316/
13'-111116/
2'-518/1
3'-878/ 5116/
19- L23
L20
14- L20
2 x (1"x1316/ ") SLOTS
2 x (1"x1316/ ") SLOTS
L97
L98
L99
L100
L77
L78
L85
L86
P10
L87
P9
L41
L88
L89
L81
434/3'-1516/
1316/
1316/
2
1 2/
1116/
3'-61516/
43'-3316/
3'-7
9 16/
2
1 2/
3
1 2/
4'-10
15 16/
2
3 4/
1116/
116/212/2'-8516/
41316/
2'-814/
3'-2316/
212/ 3316/
L78
P13
L93
L36
L38
L42
R3
P7L85
L86
P10
L87
P9
L41
L88L89
L81
212/ 3316/
41516/
L77
3'-218/
312/
41516/
L77
R3
P13
NO PAINT 2" FROM END PREP
TO RECIEVE 114/ STD PIPE OR
LEAVE AS SHOWN OR EXTRA
LONG FOR FIELD FIT UP
(TOP RAIL ONLY)
L36
L37
L38
L93
A - A
118/118/
212/ 3316/
2 x (1"x1316/ ") SLOTS
P13
L36
L38
L93
DETAIL A
SHOP NOTE:
1) FULLY WELD ALL PIPE JOINTS
2) GRIND SMOOTH ALL WELDS & EDGES
QTY. SITE BOLTS LENGTH
3/4"Ø A325N BOLT8 2 1/2"
GRID LOC REF DWGQTY
-/ E21
1 STAIRS UPDATED 21/02/14 BW
0 ISSUED TO SHOP 29/01/14 BW
A ISSUED FOR APPROVAL 27/01/14 BW
REV DESCRIPTION DATE BY
ONE - RAIL - R4 CUSTOMER:
DRAWN BY: DATE: (D/M/Y)
PROJECT:
DWG#
CANBIAN
BW 27/01/14
WESTGATE
R4
CHECKED BY:DATE: (D/M/Y)
IC3D
REV#
1HOLES: 13/16" Ø U.N.O.
PAINT: GALVANIZED JOB#
1169
ALL STEEL CRAFT
PHONE: (780) 478-6668 FAX: (780) 478-6677
FABRICATORS LTD.
MARK QTY DESCRIPTION LENGTH WEIGHT REMARKS MATL ABM#
R4 1
R4 1 PIPE1-1/4STD 9'-9 3/4" 21 A53
0RAIL
L20 9 ROD3/8" 3'-1 1/2" 10 300W
L23 23 ROD3/8" 2'-3 3/8" 19 300W
L29 1 PIPE1-1/4STD 3'-0 3/4" 7 A53
L33 1 PIPE1-1/4STD 4 1/16" 1 A53
L39 1 PIPE1-1/4STD 2'-10 3/8" 6 A53
L42 1 PIPE1-1/4STD 2'-9 5/16" 6 A53
L45 2 PIPE1-1/4STD 3'-7 5/8" 16 A53
L55 1 PIPE1-1/4STD 3'-2 9/16" 7 A53
L76 1 PIPE1-1/4STD 4'-6" 10 A53
L78 1 PIPE1-1/4STD 4'-9 3/4" 10 A53
L102 1 ROD3/8" 2'-3 7/16" 1 300W
P6 1 PL3/8"X5" 6 1/4" 2 350W
P7 1 PL3/8"X2 1/4" 8 1/2" 2 300W
P10 2 PL3/8"X2 1/4" 7 1/2" 4 300W
TOTAL WEIGHT THIS DRAWING 121
8'-81516/
2'-7516/2'-558/3'-8
43'-3316/
AA
2 x (1"x1316/ ") SLOTS
2 x (1"x1316/ ") SLOTS
L45
L45
L33
L55
L42
P10
L29
R4
P6
P7
8'-9
1'-5
1 2/
9'-10
3 8/
2'-5
12/
1316/
2'-4
1116/2'-0
1116/
4
712/
32.13°
12
716/
116/434/2'-518/5'-21116/758/1316/
2'-1038/5'-1058/
116/434/2'-518/
1116/
2'-91516/1
7 16/
4'-10
15 16/
4'-10
15 16/
212/
2
1 2/
3
1 2/
212/
114/ 212/
11'-6716/
1316/ 4'-11516/ 4'-11516/ 3'-01516/ 1316/
11- L23
11- L23
L39
L102
L23
L76
P10
L78
2
3 4/
2
1 2/
2'-7916/
3'-10116/ 378/
26@31316/ =8'-31516/ 31116/ 9@31116/ =2'-9316/
L76
L42
R4
P6
P7
L29
P10
L45L45
L33
L39
P10
L78
334/
212/
212/
334/
1 x (1"x1316/ ") SLOTS
1 x (1"x1316/ ") SLOTS P6
L45
A - A
SHOP NOTE:
GRIND SMOOTH ALL EXPOSED
WELDS & EDGES
QTY. SITE BOLTS LENGTH
3/4"Ø A325N BOLT2 1 3/4"
3/4"Ø A325N BOLT6 2"
GRID LOC REF DWGQTY
-/ E21
1 STAIRS UPDATED 21/02/14 BW
0 ISSUED TO SHOP 29/01/14 BW
A ISSUED FOR APPROVAL 27/01/14 BW
REV DESCRIPTION DATE BY
ONE - STAIR - S1 CUSTOMER:
DRAWN BY: DATE: (D/M/Y)
PROJECT:
DWG#
CANBIAN
BW 27/01/14
WESTGATE
S1
CHECKED BY:DATE: (D/M/Y)
IC3D
REV#
1HOLES: 13/16" Ø U.N.O.
PAINT: GALVANIZED JOB#
1169
ALL STEEL CRAFT
PHONE: (780) 478-6668 FAX: (780) 478-6677
FABRICATORS LTD.
MARK QTY DESCRIPTION LENGTH WEIGHT REMARKS MATL ABM#
S1 1
S1 1 C12X20.7 11'-11 15/16 250 300W
0STAIR
L1 1 C8X11.5 3'-0" 34 300W
L5 1 C12X20.7 11'-0 5/16" 230 300W
L7 1 C12X20.7 5'-0 13/16" 106 300W
L8 1 C12X20.7 5'-0 13/16" 106 300W
L10 1 C12X20.7 2'-5 1/2" 51 300W
L60 1 L3X3X3/8 9 1/2" 6 300W
P3 1 PL1/4"X2 5/8" 6 3/16" 1 350W
P16 10 GRTG1 1/4"X12 1/8" 3'-0" 98 GALV STAIR TREAD GRTA_1_1/4
40 3/8"Ø A307 BOLT 1 1/2" 3 Workshop
TOTAL WEIGHT THIS DRAWING 884
10@678/=5'-9558/
10- P16
FULL STRENGTH
SPLICE
L8
L10
L1
S1
3716/
16.06°
12
33
4/
718/
9'-11
3 7
16
/
3716/
2
11'-2 15
16
/
RD
5 15
16
/
9
7 1
16
/
1'-41
16
/
5 15
16
/
1'-10
7 1
16
/
2'-51
16
/
7 1
16
/
6'-9
5 15
16
/
7'-215
16
/
7 1
16
/
7'-10
5 15
16
/
8'-315
16
/
7 1
16
/
8'-1015
16
/
5 15
16
/
9'-47
8/
7 1
16
/
9'-1115
16
/
5 15
16
/
10'-57
8/
1'-6 1
16
/
11'-1115
16
/
5'-71516/ 9@11=8'-3 3'-21516/
33
112/ 338/ 3'-1134/
333
4'-8 5
8/
4'-85
8/
0
5'-0 1
8/
10'-23
4/
134/
1'-81316/ 81116/
4'-938/ 9'-11 2'-512/
212/
1'-018/
7 118/
212/334/
3
11'-11 15
16
/
3716/
16.06°
12
3716/
17'-178/
14/
14/
NO WELD
@ TREAD
14/
20 - 716/ Ø HOLES
38/ Øx 1 12/ A307
GALVANIZED
518/
5'-01316/
3 1
16
/
31
16
/
0
6
10'-83
4/
6
5'-25
8/
33
31
16
/
4 81516/
1'-078/
2'-2116/
712/
32.13°
12
1
21
8/
1 5
16
/
5 15
16
/
2'-11
7 1
16
/
3'-61
16
/
5 15
16
/
4'-0
7 1
16
/
4'-7
5 15
16
/
5'-015
16
/
7 1
16
/
5'-8
5 15
16
/
6'-115
16
/
14'-0316/
134/
13'-101516/
13'-101516/
17'-178/
14'-1716/
134/
14/
P3
P3
A A
L8
L7
L10
L5
L1
L60
S1
3'-0
4'-71116/
1 14/
3'-21516/
212/
516/258/
3'-0716/
31116/
10- P16
GALV STEEL TREAD (19-4)
316/ x114/ SERR BAR
STD END PL'S &
W/CHK'D PL NOSING
5'-71516/ 9@11=8'-3 214/
33
4/
31
16
/
10'-3 3
4/
RD
518/ 718/
5 15
16
/
9
7 1
16
/
1'-41
16
/
5 15
16
/
1'-10
7 1
16
/
2'-51
16
/
558/
4'-8 5
8/
4'-85
8/
0
6'-658/
5'-01316/ 9'-038/ 14/
14'-0316/
14'-1716/
11'-0 5
16
/
B
B
14/
3 SIDES
SEE MAIN VIEW FOR
TYP DIM'S & WELDS
NOT SHOWN
P3
L60
L7
L5
L1
A - A
333
33
3 1
16
/
31
16
/
0
112/ 338/ 3'-1134/
15
16
/
53
16
/
3
14/
1 1
4/
2 1
8/
5 15
16
/
5'-015
16
/
7 1
16
/
5'-8
5 15
16
/
6'-115
16
/
7 1
16
/
6'-9
5 15
16
/
7'-215
16
/
7 1
16
/
7'-10
5 15
16
/
8'-315
16
/
7 1
16
/
8'-1015
16
/
5 15
16
/
9'-47
8/
7 1
16
/
9'-1115
16
/
1058/
9@678/=5'-218/
4'-10 3
8/
10'-1
234/
3 7
16
/
3 7
16
/
15
16
/
4116/ 112/
514/
1
212/ 4916/
338/
23
16
/
39
16
/
13
16
/51
2/
6316/516/
20 - 716/ Ø HOLES
38/ Øx 1 12/ A307
GALVANIZED
9- P16 (N/S)
6
5'-25
8/
5 15
16
/
2'-11
7 1
16
/
3'-61
16
/
5 15
16
/
4'-0
7 1
16
/
4'-7
4316/612/
5 15
16
/
10'-57
8/
1078/
2 1
2/
10'-31
2/
31058/
514/
2116/
516/ 258/
134/
6316/
P16
2 x (1316/ "x1") SLOTS
P3
L60
L5
B - B

IC3D example dwgs

  • 1.
    QTY. SITE BOLTSLENGTH 3/4"Ø A325N4 1 3/4" 3/4"Ø A325N4 2" GRID LOC REF DWGQTY 4-/A.5-A E11 A ISSUED FOR APPROVAL 17/07/14 BW REV DESCRIPTION DATE BY ONE - STAIR - S1 CUSTOMER: DRAWN BY: DATE: (D/M/Y) PROJECT: DWG# CARBON STEEL BUILDINGS BW 15/07/14 CENTRAL WATER PROJECT S1 CHECKED BY:DATE: (D/M/Y) REV# AHOLES: 13/16" Ø U.N.O. PAINT: 1 CT GREY PRIMER JOB# 14-0120 ALL STEEL CRAFT PHONE: (780) 478-6668 FAX: (780) 478-6677 FABRICATORS LTD. MARK QTY DESCRIPTION LENGTH (mm) WT. (KG) REMARKS MATL ABM# S1 1 S1 1 C250X23 3543 81 300W 0STAIR L5 1 C250X23 3716 85 300W L6 1 C250X23 930 21 300W L7 1 C250X23 294 7 300W L8 1 C250X23 294 7 300W L14 1 L76X76X9.5 893 10 300W L16 1 L127X127X7.9 1028 16 300W L20 1 L102X76X9.5 245 3 300W L21 1 L102X76X9.5 245 3 300W L23 1 L102X76X9.5 350 4 300W L25 1 L76X51X6.4 1016 6 300W L26 1 L127X76X9.5 178 3 CUT 76 LEG 300W P6 1 PL8X59 144 1 350W P8 9 PL4X525 1028 165 BENT 300W P9 1 PL4X197 1028 7 BENT 300W P11 1 PL4X238 1028 8 BENT 300W 6 3/4"Ø A325N BOLT 44 0 Workshop TOTAL WEIGHT THIS DRAWING 428 72 60 195 76104270 L25 6 PP 3 3 25@200 (3) X 1 34/ " A325N IN L L20 & L21 L26 L21 L8 P11 P9 L16 L14 L6 L5 P8 P8 P8 P8 P8 P8 P8 P8 P8 A - A 213 73.5 16.5° 250 75 163 893 930 895 2224 2525 10276 137 1559@180=1621194 319 319 0 333 652 333 985 333 1318 333 1651 333 1984 333 2317 333 2650 333 2983 333 3316 400 3716 3716 287 3062 855 255 9@280=2520 1143 3918 FULL STRENGTH WELD 6 6 33° PP 8 45° 6 PP 8 60° PP 161 32.5° 250 6470 80133 37 91 25 294 299 29 18038 180 75 35 59 2866 122 45 45 101 610166 1028 E E L25 C C B B A A L5 L6L14 L16 L23 P6 P9 P11 L8 L21 L7 L20 L26 S1 9- P8 44 659 35 35 37 255 2520 1143 893 101 41 2816 1101 D D 6 80@300 6 80@300 150 @ ENDS 76 8252 324 136 3543 91 3407 289@180=1621194 6 6 L7 P11 P9 P6 L23 L16 P8 P8 P8 P8 P8 P8 P8 P8 P8 B - B 25 17 289 195 72 76104270 1448 161 26 163 319 319 0 333 652 333 985 333 1318 333 1651 333 1984 333 2317 333 2650 333 2983 333 3316 255 9@280=2520 90 2816 49 2873 2865 8 60 66 3 SIDES 6 6 L25 3 X (x) SLOTS IN L L20 & L21 S1 L20 161 32.5° 250 25 44 44 610166 89 83 32 73 89 83 32 270 270 5 L21 - L25 5 L20 - L25 6 L21 - L25 6 L21 - L25 SHOP NOTE SHOP WELD L25 ONLY TO L20 & L21 AS SHOWN 2 X (x) SLOTS 2 X (x) SLOTS L25 S1 L20 L7 L21 L8 P11 L5 C - C 127 239 644 8 144 260 28 324 76 288 2 X (x) SLOTSS1 P9 P6 L23 L16 P8 D - D 238 10 SHOP NOTE DO NOT WELD P11 TO L25 L25 P11 P8 E - E
  • 2.
    CUSTOMER: DRAWN BY: DATE:(D/M/Y) PROJECT: DWG# CPI Construction Ltd. BW 20/12/13 EDCON Power Tongs E1 CHECKED BY:DATE: (D/M/Y) IC3D REV# 0HOLES: 13/16" Ø U.N.O. PAINT: CISC/CPMA 1-73A GREY PRIMER JOB# 1166 ALL STEEL CRAFT PHONE: (780) 478-6668 FAX: (780) 478-6677 FABRICATORS LTD. 0 ISSUED FOR CONSTRUCTION 13/03/14 BW A ISSUED FOR APPROVAL 03/01/14 BW REV DESCRIPTION DATE BY ELEVATION VIEW SEE DWG E5 ROOF PLAN SEE DWG E3 2ND FLOOR PLAN SEE DWG E2 EDCON Power Tongs - ISOMETRIC VIEW (LOOKING NORTH-EAST) STAIR #1 SEE DWG E8 ELEVATION VIEW SEE DWG E5 ANCHOR BOLT PLAN SEE DWG EM1 MISC FRAMING BELOW SEE DWG E9 RTU FRAMES SEE DWG E11 ROOF HATCH LADDER SEE DWG E9 STAIR #2 & HANDRAIL SEE DWG E7 STAIR #3 & HANDRAIL SEE DWG E10 ELEVATION VIEW SEE DWG E4 TRANSFORMER ENCLOSURE SEE DWG E12 STAIR #3 & HANDRAIL SEE DWG E10 STAIR #2 & HANDRAIL SEE DWG E7 ELEVATION VIEW SEE DWG E4 BOLLARDS SEE DWG E12 RTU FRAMES SEE DWG E11 MISC FRAMING BELOW SEE DWG E9 2ND FLOOR PLAN SEE DWG E2 EDCON Power Tongs - ISOMETRIC VIEW ELEVATION VIEW SEE DWG E6 (LOOKING SOUTH-WEST) ROOF HATCH LADDER SEE DWG E9 STAIR #1 SEE DWG E8 ROOF PLAN SEE DWG E3
  • 3.
    SHOP NOTE: GRIND SMOOTHALL EXPOSED WELDS & EDGES QTY. SITE BOLTS LENGTH 5/8"Ø WEDGE_ANC BOLT2 4" 3/4"Ø A325N BOLT2 2 1/2" 3/4"Ø A325N BOLT2 2" GRID LOC REF DWGQTY 2.2/K-H E71 0 ISSUED TO SHOP 22/01/14 BW A ISSUED FOR APPROVAL 03/01/14 BW REV DESCRIPTION DATE BY ONE - STAIR - S1 CUSTOMER: DRAWN BY: DATE: (D/M/Y) PROJECT: DWG# CPI Construction Ltd. BW 02/01/14 EDCON Power Tongs S1 CHECKED BY:DATE: (D/M/Y) IC3D REV# 0HOLES: 13/16" Ø U.N.O. PAINT: CISC/CPMA 1-73A PRIMER JOB#-PO# 1166-1806 ALL STEEL CRAFT PHONE: (780) 478-6668 FAX: (780) 478-6677 FABRICATORS LTD. MARK QTY DESCRIPTION LENGTH WEIGHT REMARKS MATL ABM# S1 1 S1 1 C310X31 11'-5 1/4" 238 300W 0STAIR L79 1 C310X31 4'-0 3/16" 84 300W L84 1 C310X31 11'-7 3/16" 242 300W L86 20 L38X38X6.4 8" 31 300W L88 1 L102X76X9.5 6 1/2" 5 300W L89 1 L102X76X9.5 6 1/2" 5 300W L92 2 L102X76X9.5 4" 6 300W L94 1 L102X76X9.5 11 1/4" 8 300W L97 1 L102X76X13 5 1/4" 5 300W L118 1 L127X76X6.4 3'-2" 21 300W Z16 L140 1 L127X127X6.4 2'-10 15/16" 24 300W Z16 P80 2 PL1/4"X2 5/8" 5 9/16" 2 350W P84 1 PL1/4"X2 5/8" 2 5/8" 0 350W P85 1 PL1/4"X1 3/4" 2 5/8" 0 350W P120 10 SHT8GAX21 3/16" 3'-2" 290 8GA SHEET 300W P126 1 SHT8GAX7 1/16" 3'-2" 10 8GA SHEET 300W 6 STUD 1/2" DIA 8" 3 TOTAL WEIGHT THIS DRAWING 973 3'-10716/ 2'-101516/ 4'-0316/ 13'-612/ 3 x STUD_12/ X8 14/ 3 SIDES B/S A - A 51116/ 4316/218/ 5916/ 6'-5 11'-5 1 4/ 3 1 16/ 5 11 16/ 5 1116/ 0 1'-0 15 16/ 1'-6 58/ 1'-0 15 16/ 11'-3 116/ 2 3 16/ 11'-5 14/ 14/ 9'-6116/ 3 10@11=9'-2 1516/ 11@61316/=6'-32 12/6'-412/ L118 316/ 14/ 3 SIDES DET. A 316/ 3"@12 316/ 3"@12 FULL STRENGTH P126 SHT8GA 10- P120 (N/S) 10- L86 (N/S) 316/ 2"@9 316/ 2 316/ 2 316/ 2 316/ 2 RET @ ENDS S1 L140 P80 L92 L97 L79 1 61316/ 218/ 2 1 38/ 1158/ 634/ 2 1516/ 4 316/ 11 16/ 6 13 16/ 218/ 218/ 8 2 716/ 3 7 16/ 3716/ 7 3916/178/ 2716/ 3316/ 11'-1 1 2/ RD 1 11 7 16/ 1'-0 15 16/ 2'-7 916/ 1'-0 15 16/ 3'-8 12/ 1'-0 15 16/ 4'-9 716/ 1'-0 15 16/ 5'-10 38/ 1'-0 15 16/ 6'-11 516/ 1'-0 15 16/ 8'-0 14/ 1'-0 15 16/ 9'-1 316/ 1'-0 15 16/ 10'-2 18/ 1 4 61116/ 3 312/ 1'-2 1'-2 3716/ 15.88° 12 134/ 3716/ 658/ 7 L89 L88 258/516/516/258/ 2116/2116/ 3'-2 B B A A P126 SHT8GA 258/ 14/ 258/516/ 178/218/ 3 9'-2 1516/ 4'-0316/ 3'-10716/ 134/ 51116/ 2'-101516/ 3'-2 7 4 3 9'-2 4 118/ 3'-1058/ 134/ 9'-618/ 4'-038/ 14/ L118 B/E 316/ P84 316/ P86 L88 L89 1 x 1116/ "Ø L92 L92 L140 L94 D D C C P84 P85 L118 10- L86 10- L86 10- P120 SHT8GA 258/ 14/ 5 11 16/ 5 1116/ 0 1'-0 15 16/ 1'-6 58/ 1'-0 15 16/ 11'-3 116/ 4 1 8/ 11'-7 316/ 11@61316/=6'-32 9'-9 3 10@11=9'-2 4 12/6'-414/14/ 3 7 16/ 10 5 16/ 2 3 8/ 11'-7 3 16/ 3 1 16/ 11 7 16/ 14/ 3 SIDES 10- L86 (F/S) SHOP NOTE: SEE SECT A-A FOR TYP DETAILS & DIM`S NOT SHOWN P84 P85 L118 L92 P80 L94 L84 B - B 7716/ 31.81° 12 212/ 9'-618/ 258/ 1'-0 15 16/ 2'-7 916/ 1'-0 15 16/ 3'-8 12/ 1'-0 15 16/ 4'-9 716/ 1'-0 15 16/ 5'-10 38/ 1'-0 15 16/ 6'-11 516/ 1'-0 15 16/ 8'-0 14/ 1'-0 15 16/ 9'-1 316/ 1'-0 15 16/ 10'-2 18/ 1 912/ 118/ 7 314/ 134/ 612/14/ 6'-5 4 3 16/ 2 3 4/ 214/ 5 SHOP NOTE: NO PAINT INTERIOR FACES (TYP) 316/ 2"@9 P120 L118 C - C 51'-21'-2 11116/ 2 3 214/ 912/ 212/ 7 3'-2 3 x STUD_12/ X8 L84 L79 L97 L94 P84 P85 L118 P120 S1 2 X (1316/ "x1") SLOTS D - D 11116/3916/ 2716/ 512/ MAINTAIN L97 L79 S1 14/ 38/ 45° G PP 14/ 14/ DETAIL A
  • 4.
    SHOP NOTE: PROVIDE 38/DIA VENT HOLES IN ENDS OF HSS AS REQ'D QTY. SITE BOLTS LENGTH 3/4"Ø A325N BOLT4 2 1/4" GRID LOC REF DWGQTY 2.1/K E21 0 ISSUED TO SHOP 22/01/14 BW A ISSUED FOR APPROVAL 03/01/14 BW REV DESCRIPTION DATE BY ONE - COLUMN FRAME - F2 CUSTOMER: DRAWN BY: DATE: (D/M/Y) PROJECT: DWG# CPI Construction Ltd. BW 23/12/13 EDCON Power Tongs F2 CHECKED BY:DATE: (D/M/Y) IC3D REV# 0HOLES: 13/16" Ø U.N.O. PAINT: CISC/CPMA 1-73A PRIMER JOB#-PO# 1166-1806 ALL STEEL CRAFT PHONE: (780) 478-6668 FAX: (780) 478-6677 FABRICATORS LTD. MARK QTY DESCRIPTION LENGTH WEIGHT REMARKS MATL ABM# F2 1 F2 1 HSS127X127X8.0 24'-8 7/8" 472 CS-1E 350W 0COLUMN FRAME Z2 L9 1 L127X127X6.4 7'-6 1/4" 62 300W Z16 L27 1 L127X127X6.4 9 1/4" 6 300W Z16 L103 1 L76X76X9.5 5" 3 300W L130 1 HSS127X127X8.0 24'-7 3/4" 470 CS-1E 350W Z23 L138 1 L127X127X6.4 6'-3" 52 300W Z16 L159 1 L76X76X6.4 5" 2 300W Z33 L228 1 W360X33 7'-7" 168 350W Z15 L230 1 W360X33 7'-7 3/16" 168 BEV CUT 2E 350W Z15 L239 1 HSS127X127X6.4 13'-6 5/16" 211 BEV CUT 2E 350W Z18 L240 1 HSS127X127X6.4 6'-8 1/16" 104 BEV CUT 2E 350W Z14 L245 1 HSS127X127X6.4 13'-1 7/16" 205 BEV CUT 2E 350W Z14 L254 1 HSS127X127X6.4 6'-7 7/16" 103 BEV CUT 2E 350W Z17 L255 1 HSS127X127X6.4 6'-1 7/8" 96 BEV CUT 2E 350W Z14 L256 1 HSS127X127X6.4 6'-6 13/16" 102 BEV CUT 2E 350W Z17 L259 4 HSS127X127X6.4 8 1/8" 42 350W Z30 L272 1 C310X31 8'-3" 172 300W Z13 L280 2 L152X102X13 7" 19 300W L341 3 L102X76X9.5 7" 15 300W L343 4 L102X76X9.5 9" 25 300W L344 4 L102X76X9.5 9" 25 CUT 3" LEG 300W L346 2 L102X76X9.5 1'-0" 17 300W P4 2 PL3/4"X14" 1'-2" 83 350W P23 1 PL3/8"X3 1/2" 6 1/4" 2 350W P26 1 PL3/8"X3 1/2" 6 3/16" 2 350W P37 2 PL3/8"X4 1/2" 4 1/2" 4 350W P69 1 PL1/2"X9 3/4" 1'-5 5/16" 17 350W P115 1 PL1/4"X4 3/4" 5" 2 350W P134 4 PL3/8"X3 1/4" 5" 7 350W P135 1 PL3/8"X4 1/2" 4 3/4" 2 350W P136 1 PL3/8"X4 1/2" 5" 2 350W P150 2 PL3/8"X4" 9 9/16" 6 350W P158 4 PL3/8"X6" 6" 15 350W P159 2 PL3/8"X6" 6 1/2" 8 350W P166 1 PL1/2"X4" 1'-4 9/16" 9 350W P172 2 PL3/8"X4 1/2" 4 5/8" 4 350W 13 STUD 1/2" DIA 8" 7 TOTAL WEIGHT THIS DRAWING 2714 34/ 34/ 634/ 2316/ 1'-21516/ 412/ 2 1 4/ 2 1 4/ 112/ 112/ 8'-3 1 16/ 1 16 / 6'-10 11 16/6'-9 13 16/ 3 1 8/ 1 3 8/ 12 18/ 2 9'-7716/ 316/ 7'-7316/ 316/ 812/ 24'-878/ 118/ 5 14/914/ 412/ 14/ 38/818/ 812/ 38/818/ 24'-238/ 23'-712/ 678/ 6'-8 15 16/ RD 7 8/ 7 8/ 6 11 16/ 71316/ 12 812/ 12 1 3 4/ 1 3 4/ 6 11 16 / 6'-8 1 16 / 13'-1 7 16/ 8'-0 6 6 0 14/ 60° PP A A B B P4 P4 516/ 6'-7 7 16/ 6'-8 13 16 / RD 13'-6 5 16 / 38/38/ 3 5 16/ 1 2/ 912/ 11'-218/ 12'-458/ 23'-6116/ 38/ 61316/ 714/ 714/ 9'-1012/ 22'-234/ 24'-818/ 24'-1014/ (HSS127X127X8.0 x 24'-8 78/ ) 11'-338/ 11'-938/ 12'-378/ 24'-114/ 678/ 24'-818/ L346 L344 L344 L344 L346 L344 14/ 14/ BUILD UP AS REQ'D (316/ ) PP, B/S 14/ 3 SIDES (316/ ) PP, B/S TYP U/NOTED L280 6 x STUD_12/ X8 P23 G G G G F F E E D D C C L130 P115P37 P172 P69 P37 L159 P172 P136 P134 (B/S) P134 (B/S) 6 x STUD_12/ X8 F2 L228 L9 L239 L254 L259 L27 L103 P26 L245 L240 L230 L259 L259 L256 L255 L272 L138 L259 12/ 6'-1 7 8/ 2 3'-8 9'-914/ 1'-0 P150 L341 L343 L341 14/ 14/ 3 SIDES P166 P158 P159 CUT SQ 316/ 316/ 14/ 14/ 14/ 916/ (516/ ) 33° PP 38/ (14/ ) 57° PP 14/ B/S 716/ (516/ ) 55° PP 916/ (516/ ) 35° PP 916/ (516/ ) 35° PP 516/ (316/ ) PP, B/S 6'-114/ 6'-114/ RD EL99'-8 EL105'-10 2 86'-38 412/ 14/ 234/ 51316/ 2'-7 12'-414/ 34/ 1 EL112'-1 58/ 58/ 21 8/ 3 5 16 / 612/ 1 2/ 1 2 13 16/ 6 6 612/ 12/ 7'-614/34/ 14/ 14/ 12'-212/ 1112/8'-0 113 16 / 1 2 3 4/ 6'-6 13 16/ 6'-9 15 16 / 6'-7 3 4/ 1 1 8/ 1 1 8/ 2 7 8/ 1 12/ 58/ 2516/51316/ 234/ 2'-612/ 24'-914/ 12/ EL124'-6 14/ (316/ ) PP, B/S P150 L343 L341 P158 14/ 14/ 14/ 916/ (516/ ) 33° PP 14/ PP, B/S 38/ (14/ ) 57° PP 516/ 23'-134/ 24'-41116/ L280 24'-878/ 34/ 55 L280 L280 14/ 14/ L9 P135L103 P26 P23 L272P4 L228 L230 L130 B - B 33 33333 212/212/ 11'-378/ 23'-734/ 6'-114/RD 11'-078/ 3 23'-312/ 55 212/212/ 55 12'-212/ 22 134/ 3 134/ 134/ 24'-734/ 38/ 12'-414/ 316/ 12/ RET & TOP (TYP) 14/3 SIDES L346 L344 (B/S)L344 (B/S) L346 12'-414/ 12'-414/ 0 24'-10 34/ 55 14/ 14/ P134 L259 P134 L27 P115 L272 L259 P134 P172 L9 L230 L254P4 A - A 12'-5 24'-914/ 24'-878/ 412/412/ 91316/ 12 3 3 1'-012/ 2516/ 8716/178/ L343 L341 L343 L341 L341 L343 L343 2 x (1316/ "x1") SLOTS P150 14/3 SIDES 14/3 SIDES F2 L259 P172 L159 P136 P134 P37 P69 11'-714/ 12'-734/ 212/ 212/ 212/334/ 234/ 12/5716/ 6'-114/RD 10'-714/ 4 8 3 3 612/ 4 12'-012/ 212/ 114/ 134/ 22 23'-014/ 4 8 3 3 24'-014/ 55 212/ 212/ 212/334/ 24'-512/ 212/ 114/ 14/ 38/ 22 5 5 557'-255 8'-0 4 x 1 916/ "Ø 4 x 1 916/ "Ø P69 P4 P4 F2 North L130 C - C 1'-2 4'-912/ 1'-2 5'-1112/ 312/ 6'-3 1012/6'-31012/ 134/ 134/ 438/438/ 112/8'-0112/ 578/46'-7516/4578/ SHOP NOTE: NO PAINT INT ANGLE FACES 316/ 316/ 316/ 3"@12 L130 L240 L245 L255 L272 F2 L138 D - D 112/ 112/ RD 1'-2 1'-312/ 1'-2 2'-512/ 1'-2 3'-712/ 58/L341 12/L343 1112/ 814/ 212/ SHOP NOTE: NO PAINT INT ANGLE FACES 316/ 316/ 316/ P37 316/ 3"@12 316/ 3"@12 14/ 14/ PP, BUILD UP ON HSS RAD 14/ 14/ L130 L228 L9 L259 P134 L27 P115 L103 P26 P23 P134 F2 E - E 2 458/458/ 912/ 14/914/ 14/ 434/ 3 516/CTRD 21 2/ 2 12/ 112/ 538/ 278/ 11316/ 2516/ 4716/ 1012/ 1012/ RD1'-2 2'-012/ 1'-2 3'-212/ 1'-2 4'-412/ 1'-2 5'-612/ 1'-2 6'-812/ 934/ 7'-614/ 7'-614/314/ 2516/4716/ 12 12 12 6916/ 21 2/ 316/ 2 716/ 134/ 3 L344 L344 L346 L343L341 L343 L341 134/CUT LEG 58/L341 12/L343 1112/12/ 11 814/ 814/ L344 PP 316/ P134 L259 P37 P134 F2 P136 L159 14/ 45° PP 316/ 14/ 45° PP 14/ PP, 3 SIDES L230 L130 L280 P135 F - F 2 5 2 14/ 14/ 3 3 134/CUT LEG 516/CTRD 12/ 212/ 2 2 2 L343 L341 L346 P158 L344 212/334/ 7NOPAINT 51316/ 14/ 458/ 18/ 11 812/ 38/818/ 316/ 316/ SHOP NOTE MAINTAIN FOR FIELD WELDING P150 NO PAINT SEAL 316/ 3 SIDES F2 L259 P172 G - G
  • 5.
    SHOP NOTE: 1) FULLYWELD ALL PIPE JOINTS 2) GRIND SMOOTH ALL WELDS & EDGES QTY. SITE BOLTS LENGTH GRID LOC REF DWGQTY 2.1-2.2/K-H E71 0 ISSUED TO SHOP 22/01/14 BW A ISSUED FOR APPROVAL 03/01/14 BW REV DESCRIPTION DATE BY ONE - HANDRAIL - R1 CUSTOMER: DRAWN BY: DATE: (D/M/Y) PROJECT: DWG# CPI Construction Ltd. BW 24/12/13 EDCON Power Tongs R1 CHECKED BY:DATE: (D/M/Y) IC3D REV# 0HOLES: 13/16" Ø U.N.O. PAINT: CISC/CPMA 1-73A PRIMER JOB#-PO# 1166-1806 ALL STEEL CRAFT PHONE: (780) 478-6668 FAX: (780) 478-6677 FABRICATORS LTD. MARK QTY DESCRIPTION LENGTH WEIGHT REMARKS MATL ABM# R1 1 R1 1 PIPE1-1/4STD 11'-11 9/16" 26 A53 0HANDRAIL L198 1 PIPE1-1/4STD 1'-11 5/16" 4 A53 L200 3 PIPE1-1/4STD 2'-9 3/4" 18 A53 L201 2 PIPE1-1/4STD 3'-6 5/16" 15 A53 L202 1 PIPE1-1/4STD 3'-3 3/4" 7 A53 L204 1 PIPE1-1/4STD 6 1/16" 1 A53 L211 1 PIPE1-1/4STD 3 15/16" 1 A53 L212 1 PIPE1-1/4STD 2 13/16" 1 A53 L216 27 ROD3/4" 2'-4 3/8" 93 300W L217 1 ROD3/4" 2'-4 7/8" 4 300W L282 1 PIPE1-1/4STD 4 13/16" 1 A53 TOTAL WEIGHT THIS DRAWING 170 8'-678/ 1'-101516/1'-101516/2'-118/ 2 21316/ 10'-41316/ 33 8/ 2'-13 8/ 1 2'-55 8/ 2'-65 8/ 318/ L217 L216 L216 L216 L198 L202 L201 L201 L200 L200 2'-738/ 2'-6916/1316/ L212 L282 L211 L204 A A 6'-358/ 2'-11 3'-1 3'-1 1'-1 3'-5 3 16 / 3'-7 9 16 / 3'-7 9 16 / 4 4 8@358/ =2'-5 4 4 8@358/ =2'-5 4 11'-11 9 16 / SHOP NOTE: NO PAINT 2" AROUND POST ENDS L216 L216 L216 L216 L216 L216 L216 L216 L216 L216 L216 L216 L216 L216 L216 L216 L216 L216 L216 L216 L216 L200 L216 L216 L216 R1 12/4 7716/ 31.81° 12 1916/ 3'-0 1 412/2'-578/1 2'-11516/ 2'-978/ 2 8@358/ =2'-5 2'-314/ 2'-11516/ 1'-738/8116/ 778/2'-3716/ 13 16 / 1'-3 5 16 / 41316/ 6116/ R1 L212 L211 L282 L204 2'-738/ 2'-6916/1316/ 6116/ 5316/ 41316/ 31516/ SHOP NOTE: NO PAINT 2" AROUND RAIL END SHOP NOTE: NO PAINT 2" AROUND RAIL END L204 L282 L217 A - A
  • 6.
    QTY. SITE BOLTSLENGTH GRID LOC REF DWGQTY 2.1-2.2/K-H E71 0 ISSUED TO SHOP 22/01/14 BW A ISSUED FOR APPROVAL 03/01/14 BW REV DESCRIPTION DATE BY ONE - HANDRAIL - R2 CUSTOMER: DRAWN BY: DATE: (D/M/Y) PROJECT: DWG# CPI Construction Ltd. BW 24/12/13 EDCON Power Tongs R2 CHECKED BY:DATE: (D/M/Y) IC3D REV# 0HOLES: 13/16" Ø U.N.O. PAINT: CISC/CPMA 1-73A PRIMER JOB#-PO# 1166-1806 ALL STEEL CRAFT PHONE: (780) 478-6668 FAX: (780) 478-6677 FABRICATORS LTD. MARK QTY DESCRIPTION LENGTH WEIGHT REMARKS MATL ABM# R2 1 R2 1 PIPE1-1/4STD 11'-4 9/16" 24 A53 0HANDRAIL L199 1 PIPE1-1/4STD 2 7/8" 1 90° SR ELBOW A53 L200 3 PIPE1-1/4STD 2'-9 3/4" 18 A53 L201 3 PIPE1-1/4STD 3'-6 5/16" 23 A53 L205 1 PIPE1-1/4STD 4 13/16" 1 A53 L206 1 PIPE1-1/4STD 2 1/16" 0 A53 L207 1 PIPE1-1/4STD 5 5/16" 1 A53 L216 27 ROD3/4" 2'-4 3/8" 93 300W L219 1 ROD3/4" 2'-7 1/2" 4 300W L276 1 PIPE1-1/4STD 2'-10 13/16" 6 A53 TOTAL WEIGHT THIS DRAWING 171 5'-111516/ 8'-1034/ 1'-101516/1'-101516/1'-101516/ 1316/ 3'-1 3'-1 3'-1 81516/ 10'-01316/ 3'-7 1 2/ 11'-4 9 16/ SHOP NOTE: 1) FULLY WELD ALL PIPE JOINTS 2) GRIND SMOOTH ALL WELDS & EDGES L216 L216 L216 L216 L216 L201 L201 L201 L276 2'-101316/ 12/2'-978/716/ 1 12/ 5316/ 3'-0 2'-6 58/ 2'-5 58/ 1 1316/ 2'-1 38/ 3 38/ 4 4 8@358/ =2'-5 4 31516/ 8@358/ =2'-5 3'-8 1 2/ 3'-7 1 2/ SHOP NOTE: NO PAINT 2" AROUND POST ENDS L216 L216 L216 L216 L216 L216 L216 L216 L216 R2 L200 L200 L216 L216 L216 L216 L216 L216 L216 L216 L216 L216 L216 12 31.81° 7716/ 4 2'-578/138/ 1916/ 2'-11516/ 41316/ 8@358/ =2'-5 3716/2'-10 5516/ 358/ 4716/ 358/ 2'-9316/1316/ 4116/ 414/ 41116/ 5 L205 L206 L207 L199 A A L216 L216 L200 L219 41316/ 31516/ 258/ 11316/ R2 L206 L205 L199 L207 218/ 212/ 41316/ 31516/ 11316/ 2'-10 2'-9316/1316/ SHOP NOTE: NO PAINT 2" AROUND ELBOW END SHOP NOTE: NO PAINT 2" AROUND RAIL END L219 L205 L206 L207 L199 R2 A - A
  • 7.
    SHOP NOTE: GRIND SMOOTHALL EXPOSED WELDS & EDGES QTY. SITE BOLTS LENGTH 3/4"Ø A325N BOLT2 2 1/2" 3/4"Ø A325N BOLT2 2 1/4" 3/4"Ø A325N BOLT4 2" GRID LOC REF DWGQTY 2.1-2.2/K-H E71 0 ISSUED TO SHOP 22/01/14 BW A ISSUED FOR APPROVAL 03/01/14 BW REV DESCRIPTION DATE BY ONE - STAIR - S2 CUSTOMER: DRAWN BY: DATE: (D/M/Y) PROJECT: DWG# CPI Construction Ltd. BW 02/01/14 EDCON Power Tongs S2 CHECKED BY:DATE: (D/M/Y) IC3D REV# 0HOLES: 13/16" Ø U.N.O. PAINT: CISC/CPMA 1-73A PRIMER JOB#-PO# 1166-1806 ALL STEEL CRAFT PHONE: (780) 478-6668 FAX: (780) 478-6677 FABRICATORS LTD. MARK QTY DESCRIPTION LENGTH WEIGHT REMARKS MATL ABM# S2 1 S2 1 C310X31 11'-9 15/16" 246 300W 0STAIR L26 1 L127X127X6.4 3'-2" 26 300W Z16 L80 1 C310X31 3'-7 1/4" 75 300W L81 1 C310X31 12'-2 7/8" 255 300W L86 20 L38X38X6.4 8" 31 300W L88 1 L102X76X9.5 6 1/2" 5 300W L89 1 L102X76X9.5 6 1/2" 5 300W L93 1 L102X76X9.5 11 1/4" 8 300W L94 1 L102X76X9.5 11 1/4" 8 300W L96 1 L102X76X9.5 11 1/4" 8 300W L98 1 L102X76X13 8 1/2" 8 300W L118 1 L127X76X6.4 3'-2" 21 300W Z16 L139 1 L127X127X6.4 2'-11 15/16" 25 300W Z16 P81 2 PL1/4"X1 7/16" 2 5/8" 1 350W P83 1 PL1/4"X2 5/8" 5 7/16" 1 350W P85 2 PL1/4"X1 3/4" 2 5/8" 1 350W P120 10 SHT8GAX21 3/16" 3'-2" 290 8GA SHEET 300W P127 1 SHT8GAX9 9/16" 3'-2" 13 8GA SHEET 300W 9 STUD 1/2" DIA 8" 5 TOTAL WEIGHT THIS DRAWING 1030 6'-10 14/6'-912/14/ S2 L94 P83 L96 A - A 212/ 52 9 16 / 11 8/ 43 8/ 51 2/ 15 16 / 33 8/ 15 16 / 31 16 / 115 16 / 212/912/ 14/ 1716/ 134/14/ 118/ 1116/ 9'-5316/ 258/ 11 8/ 2 87 8/ 313 16 / 31 4/ 1'-0 15 16 / 6'-815 16 / 1'-0 15 16 / 7'-97 8/ 1'-0 15 16 / 8'-1013 16 / 1'-0 15 16 / 9'-113 4/ 1'-0 15 16 / 11'-011 16 / 95 16 / 11'-915 16 / 118/ 6916/214/ 5716/14/ 111316/10@61316/=5'-8316/2 3 10@11=9'-2 4 P85 P81 L118 L26 P127 SHT8GA 10- P120 (N/S) SHT8GA 10- L86 (N/S) 14/ 3 SIDES 14/ 3 SIDES 316/ 2"@9 316/ 2 316/ 2 316/ 2 316/ 2 RET @# ENDS 212/ 61116/218/ 2 1 1158/ 38/ 61316/ 218/ 613 16 / 11 16 / 43 16 / 215 16 / 1 8 218/ 334/ 9'-9 9'-812/ 14/ 1 19 16 / 51 2/ 11'-9 15 16 / 31 4/ 31 4/ 0 1'-0 15 16 / 1'-43 16 / 1'-0 15 16 / 2'-51 8/ 1'-0 15 16 / 3'-61 16 / 1'-0 15 16 / 4'-7 1'-0 15 16 / 5'-715 16 / 13'-612/ 3'-1058/ 4'-038/ 4'-112/ B B 118/ 1516/ 9'-5316/ 1516/ 3 9'-2 3 9'-2 4 3'-2 L81 P83 L139 L80 14/ L26 B/E 14/ L118 B/E L94 L96 F FE E D D C C A A P81 P85 L118 L26 P127 SHT8GA P81 P85 10- L86 10- P120 SHT8GA 10- L86 134/ 218/178/ L89 L88 212/912/ 52 9 16 / 11 8/ 43 8/ 51 2/ 15 16 / 37 16 / 7 8/ 31 8/ 115 16 / 14/ 3 x STUD_12/ X8 L139 L93 L98 L80 L81 L88 L89 B - B 3'-2116/ 134/ 312/ 1'-2 1'-2 312/ 7116/ 2'-111516/ 214/ 3116/ 1'-0 15 16 / 8'-79 16 / 1'-0 15 16 / 9'-81 2/ 1'-0 15 16 / 10'-97 16 / 10 3 4/ 11'-83 16 / 1 7'-3 13'-612/ 10'-2716/ 3'-31316/ 3 10@11=9'-2 91116/ 3716/ 741316/ 111316/10@61316/=5'-8316/2 638/ 10- L86 (F/S) SHOP NOTE: SEE SECT A-A FOR TYP DETAILS & DIM`S NOT SHOWN 38/ 45° 14/ PP 14/ 14/ 14/ 3 SIDES B/S 316/ 3"@12 316/ 3"@12 14/ 3 SIDES 1916/518/111316/ 3 1 3316/ 3716/ 15.88° 12 3716/ 37 16 / 12'-2 7 8/ 31 4/ 0 31 4/ 1'-0 15 16 / 1'-015 16 / 1'-0 15 16 / 2'-17 8/ 1'-0 15 16 / 3'-213 16 / 1'-0 15 16 / 4'-33 4/ 1'-0 15 16 / 5'-411 16 / 1'-0 15 16 / 6'-55 8/ 1'-0 15 16 / 7'-69 16 / 214/ 7 212/ 912/ 212/ 912/ 11116/11116/ 134/ 14/ 134/ 14/ 516/258/258/516/ 51'-21'-2 3'-2 2 X (1316/ "x1") SLOTS 2 X (1316/ "x1") SLOTS L81 P85 L118 P81 P85 L93 L94 P81 S2 P120 SHT8GA C - C 3 111316/ 51'-21'-2 14/ 5716/ 712/ 212/ 11116/ 3'-2516/ 3 x STUD_12/ X8 2 X (1316/ "x1") SLOTS L26 L81 L96P83 L98 P127 SHT8GA P120 SHT8GA S2 D - D 61116/218/ 5 SHOP NOTE: NO PAINT INT FACES 316/ 2"@9 L118 P120 E - E 1 61116/218/ 111316/ 316/ 2"@9 SHOP NOTE: NO PAINT INT FACES L26 P120 P127 F - F
  • 8.
    QTY. SITE BOLTSLENGTH 3/4"Ø A325N BOLT6 2" GRID LOC REF DWGQTY 5.2-6.1/J-H E81 0 ISSUED TO SHOP 22/01/14 BW A ISSUED FOR APPROVAL 03/01/14 BW REV DESCRIPTION DATE BY ONE - STAIR - S3 CUSTOMER: DRAWN BY: DATE: (D/M/Y) PROJECT: DWG# CPI Construction Ltd. BW 02/01/14 EDCON Power Tongs S3 CHECKED BY:DATE: (D/M/Y) IC3D REV# 0HOLES: 13/16" Ø U.N.O. PAINT: CISC/CPMA 1-73A PRIMER JOB#-PO# 1166-1806 ALL STEEL CRAFT PHONE: (780) 478-6668 FAX: (780) 478-6677 FABRICATORS LTD. MARK QTY DESCRIPTION LENGTH WEIGHT REMARKS MATL ABM# S3 1 S3 1 HSS203X203X8.0 9'-5 1/8" 301 350W 0STAIR Z2 L1 1 HSS305X203X13 17'-11 3/4" 1124 350W L30 1 HSS305X203X13 2'-2 5/16" 137 350W L31 1 HSS305X203X13 1'-5 1/8" 89 350W L32 1 HSS305X203X13 4'-8 7/8" 296 350W P8 16 PL3/4"X11" 2'-0" 853 350W P9 1 PL1/2"X4 1/16" 2'-0" 13 350W P10 20 PL1/2"X6 1/2" 2'-0" 410 350W P11 40 PL1/2"X5 11/16" 9" 146 350W P12 1 PL3/4"X16" 1'-4" 54 350W P13 1 PL3/4"X16" 2'-6" 102 350W P20 1 PL3/4"X11 3/8" 2'-0" 58 350W P21 1 PL3/4"X30" 4'-2" 316 350W P36 1 PL3/8"X7 1/4" 11 5/8" 9 350W P74 1 PL1/4"X30" 4'-2" 0 Neoprene P77 19 PL1/4"X11" 2'-0" 0 Neoprene P78 1 PL1/4"X8" 2'-0" 0 Neoprene P87 1 PL1/2"X13 3/4" 1'-2" 27 350W P88 2 PL1/2"X4 1/16" 9" 7 350W P173 3 PL3/4"X11" 2'-0" 160 350W TOTAL WEIGHT THIS DRAWING 4102 1'-10 9'-658/14/5 9 3 8/ 9 38/ 0 1'-0 15 16/ 1'-10 516/ 6 15 16/ 6 1516/ 0 1'-0 15 16/ 1'-7 78/ 1'-0 15 16/ 2'-8 1316/ 5916/16@61316/=9'-1116/ P9 P88 (B/S) CC A - A EL109'-778/ 1'-0 15 16/ 13'-8 1116/ 1'-0 15 16/ 14'-9 58/ 1'-0 15 16/ 15'-10 916/ 1'-0 15 16/ 16'-11 12/ 10 7 16/ 17'-9 1516/ RISER PTS 1'-0 15 16/ 11'-4 516/ 1'-0 15 16/ 12'-5 14/ 1'-0 15 16/ 13'-6 316/ 1'-0 15 16/ 14'-7 18/ 1'-0 15 16/ 15'-8 116/ 1'-0 15 16/ 16'-9 1'-0 15 16/ 17'-9 1516/ TREAD PTS 17'-21316/ 1316/ 16@11=14'-8 2'-6 1'-312/ 1'-212/ 1 13 16/ 6 3 4/ 17'-11 3 4/ 6 1'-0 S3 L30 L31 DET. B S3-A P74 Neop Pad P21 1'-0 15 16/ 2'-11 14/ 1'-0 15 16/ 9'-4 1516/ 1'-0 15 16/ 10'-5 78/ 1'-0 15 16/ 11'-6 1316/ 1'-0 15 16/ 3'-9 34/ 1'-0 15 16/ 4'-10 1116/ 1'-0 15 16/ 5'-11 58/ 1'-0 15 16/ 7'-0 916/ 1'-0 15 16/ 8'-1 12/ 1'-0 15 16/ 9'-2 716/ 1'-0 15 16/ 10'-3 38/ 1'-6 9 16/ 11 14'-9516/ 13'-4516/ 3316/ 16- P11 (B/S) 16- P10 16- P8 16- P77 Neop Pads P13 L1 DET. A S3-A 1'-0 15 16/ 4'-0 14/ 1'-0 15 16/ 5'-1 316/ 1'-0 15 16/ 6'-2 18/ 1'-0 15 16/ 7'-3 116/ 1'-0 15 16/ 8'-4 1'-0 15 16/ 12'-7 34/ EL99'-8 34/9'-518/34/ 55 3 7 16/ 1'-0 15 16/ 1'-0 1516/ 0 TREAD PTS 1'-0 15 16/ 2'-1 78/ 1'-0 15 16/ 3'-2 78/ 2 1 2/ 2 12/ 0 RISER PTS 1'-0 15 16/ 1'-3 716/ 1'-0 15 16/ 2'-4 38/ 1'-0 15 16/ 3'-5 516/ 12 31.81° 7716/ 11'-91516/1'-0116/ 9'-658/ 7'-101316/ 4'-8 7 8/ 3@11=2'-9 9'-518/ 2'-3516/ P10 DET. E S3-A DET. D S3-A P173 P173 P173 P11 (B/S) P11 (B/S) P11 (B/S) P11 (B/S) P20 P78 Neop Pad L1 S3 P12 B - B EL99'-8 34/ EL112'-6 4@61316/=2'-3516/ 3716/ 15.88° 12 3716/ 2'-2516/38/ 1'-518/ 1'-912/ 2'-412/ 34/ 3- P77 Neop Pads P10 P74 Neop Pad P10 DET. C S3-A 1138/ 2 1 9 16/ 6 7 8/ 111316/ 34/ P10 12/ 314/ 10716/ 3316/ 1'-01'-0 66 11 14'-9516/ 6 1'-10 13'-4516/ 1'-0 14/ 14/ 14/ 4 x 1516/ "Ø 4 x 1516/ "Ø P12 S3 North P9 P88 P88 P13 L1 C - C STAIR S3 1'-01'-0 1316/ 88 A A STAIR S3 PLAN VIEW 1'-0 8 17'-21316/ 2'-6 1'-912/2'-412/ 1'-212/ L30 L32 S3 B B WORK WITH DWG S3-A 6 14'-8 SHOP OR FIELD INSTALL NEOPRENE PADS WITH REQ'D ADHESIVE. INSTALL PRECAST TREADS AT SAME TIME AS PADS. 1- P74 Neoprene Pad 1- P78 Neoprene Pad 16- P77 Neoprene Pads P87 L31 2 6 2 1'-312/ 3- P77 Neoprene Pads 1'-0 24 8 7'-1058/ 4'-22'-9111316/
  • 9.
    WORK WITH DWGS3 CUSTOMER: DRAWN BY: DATE: (D/M/Y) PROJECT: DWG# CPI Construction Ltd. BW 03/01/14 EDCON Power Tongs S3-A CHECKED BY:DATE: (D/M/Y) REV# 0HOLES: 13/16" Ø U.N.O. PAINT: CISC/CPMA 1-73A GREY PRIMER JOB#-PO# 1166-1806 ALL STEEL CRAFT PHONE: (780) 478-6668 FAX: (780) 478-6677 FABRICATORS LTD. 0 ISSUED TO SHOP 22/01/14 BW A ISSUED FOR APPROVAL 03/01/14 BW REV DESCRIPTION DATE BY 5916/61316/61316/ 34/4116/34/ A3 A3 SHOP NOTE: PL CONTACT POINTS SEE SECT A-A SHOP NOTE: NEOPRENE PADS NOT SHOWN FOR CLARITY P11 P8 P9 P10 P13 P11 P8 P8 P10 P88 DETAIL A DWG S3 2 6 9 3 8/ 1'-0 15 16/ 1'-0 15 16/ RISER PTS 1512/ 612/ 938/ 1316/ 11 11 6 15 16/ 1'-0 15 16/ 1'-0 15 16/ TREAD PTS 1111 10716/314/12/ A2 A2 A1A1 814/ P8NOTCH 11 12/ 44 2'-0 4884 938/ 158/ 2 6 3 8 4 x 1116/ "Ø P11 P11 P10 P8 & P173 P10 L1 A1 - A1 61316/ 512/1778/814/ P10 NOTCH 778/ 8 34/612/516/ 14/ 14/ 14/14/ P11 P11 P8 P10 P8 L1 A2 - A2 18/ 8 12/ G PP (TYP) P11 P11 P8 L1 A3 - A3 938/ 218/ 1'-312/ 612/ 61316/ L1 SHOP NOTE: NEOPRENE PADS NOT SHOWN FOR CLARITY 14/ L30 & L31 TO L1 12/ (14/ ) 32° PP 38/ (14/ ) 58° PP (316/ ) PP, B/S L1 TO S3 14/ B/S P11 P11 L30 L31 P21 S3 P10 P8 DETAIL B DWG S3 2 6 1'-0 15 16/ 34/61316/61316/ 1'-0 15 16/ TREAD PTS 1'-0 15 16/ 2 1 2/ RISER PTS 2 NOTCH (P21) X 814/ 112/ 2'-412/ 11 D1D1 SHOP NOTE: PL CONTACT POINTS SEE SECT B-BSHOP NOTE: SEE DET. A FOR TYP WELDS & DETAILS P173 P173 L32 L30 P21 P10 P10 DETAIL D DWG S3 2 2'-412/ 12/ 1'-212/1'-312/ 814/ P21NOTCH 44 1'-01'-0 S3 P10 P11 P11 L31 L32 L30 P21 L1 D1 - D1 38/ 1'-518/ 1'-912/ 1158/34/ 14/ SHOP NOTE: NEOPRENE PADS NOT SHOWN FOR CLARITY SHOP NOTE: SEE DET.B FOR F/S WELDS TO L1 (316/ ) G PP, N/S ONLY (516/ ) PP, B/S 14/ 14/ 3 SIDES 14/ (516/ ) PP, B/S 14/ 45° PP S3 L30 P21 L31 L1 DETAIL C DWG S3 2 4 55234/ 61316/ 11 1138/ 716/ 12/ 11516/ SHOP NOTE: SEE DET. A FOR TYP WELDS & DETAILS E2E2 E1 E1 P11 P11 P20 P11 P11 P173 L32 P87 P10 P10 DETAIL E DWG S3 552 534/ 534/ 1'-0 1'-0 P20 P87 L32 E1 - E1 534/534/ 88 2 4 1138/ 716/ 4 x 1116/ "Ø P10 P20 L32 P87 E2 - E2
  • 10.
    PROJECT: DRAWN BY: DATE:(D/M/Y) TITLE: DWG# GOVAN BROWN BW 29/05/14 RBC MAPLE EDMONTON E1 CHECKED BY:DATE: (D/M/Y) REV# 0HOLES: 13/16" Ø U.N.O. PAINT: 1 CT GREY PRIMER JOB# 1233 ALL STEEL CRAFT PHONE: (780) 478-6668 FAX: (780) 478-6677 FABRICATORS LTD. CUSTOMER: PARTITION SUPPORT FRAMING 0 ISSUED FOR CONSTRUCTION 23/06/14 BW B ISSUED FOR APPROVAL 09/06/14 BW A PRELIM- ISSUED FOR INFORMATION 29/05/14 BW REV DESCRIPTION DATE BY DET. A9 8 7 F 9 8 7 F F - F DETAIL A DETAIL B B - B C - C D - D G - G A - A DETAIL K 1'-6 1'-6 3'-0 OPP/ HANDG G F F DET. B COORDINATE POCKET BELOW (BY OTHERS) PARTITION STEEL SUPPORTR PLAN B1W8X21 16'-10 33'-014/ B1W8X21 KB B6 W8X21 B6 W8X21 B6 W8X21 KB KB B5W8X21 KB 1114/14'-6912/ 16'-214/ 1114/ 6'-834/ 7'-8 1'-10 1034/1034/ KB A A OPP/ HAND DET. A DET. A DET. B KB C1 C3X5 KB C2 C3X5 C4 C3X5 C3 C3X5 B4W8X21 B2 W8X21 B3 W8X21 1'-412/ 1'-534/ 114/ EXT. WALL C3 C3X5 3'-0 1134/ 5'-914/9'-49'-49'-4 178/633'-914/ 534/ 7'-8 FIELDVERIFY 24'-0 TACKLENGTHREF. 2'-214/ 16'-234/FIELDMEASURED1'-912/ BEAM & TRACK HOLE LAYOUT COORDINATE BEAM & TRACK LOCATION W/ MODERNFOLD DWG'S EXIST CONC COL EXIST CONC COL EXIST CONC COL EXT. WALL BEAM BOTT FLG (TYP) 61'-04 2'-014/ 1'-834/6 8'-01'-62'-1 5'-914/9'-534/ 615'-3 212/ 1'-6 3'-0 212/ TYP 7'-35 10 6 6 6 66 B6 W8X21 B6 W8X21 B6 W8X21 B1W8X21 B1W8X21 B3 W8X21 B2W8X21 POCKET BELOW (BY OTHERS) 1'-01'-01'-11'-03'-03'-03'-01'-71'-01'-61'-66 3'-114/ 2'-414/734/ 51'-034/ 1'-534/ 15'-10 B5W8X21B4W8X21 15'-3 9'-534/ 4 5'-914/ DET. K C1 C3X5 B1 W8X21 B2 W8X21 C4 C3X5 8- 34/ DIA X 10 HAS-E ROD HILTI_HIT150 (SHORTEN AS REQ'D) (1 34/ "x1316/ ") SLOTS IN PL C C B B PL12/ "X11 2 32 4 4 55 W8X21 C3 C3X5 KB C3X5 P1 - WASHER PL38/ "X2 X 2 @ EA ANCHOR 32 4 4 2 W8X21 6- 34/ DIA X 10 HAS-E ROD HILTI_HIT150 (SHORTEN AS REQ'D) (1 34/ "x1316/ ") SLOTS IN PL PL12/ "X9 P1 - WASHER PL38/ "X2 X 2 @ EA ANCHOR D D 112/ 112/ 4 1134/1'-014/ 2'-0 FIELDMEASURED W8X21 4 x BOLT 34/ "DIA A325 214/ KB C3X5 C3 C3X5 P1 PL WASH CUT & CHISEL ANCHOR ENDS 45 DEGREES AS REQ'D EXIST SUSPENDED CIELING 6 MIN 4MINEMBED 2 2 4 EXIST FLOOR SLAB 3 234/ 114/ 5 KB PL38/ "X3 PL38/ "X1 12/ 5 4 2 C3 C3X5 2'-0 1'-014/ KB C3X5 C1 C3X5 P18 W8X21 4 x BOLT 34/ "DIA A325 214/ EXIST FLOOR SLAB CUT & CHISEL ANCHOR ENDS 45 DEGREES AS REQ'D EXIST SUSPENDED CIELING 6 MIN 4MINEMBED 4 2 2 P1 PL38/ "X2 1134/ 4 33'-914/ 9'-4 C3 C3X5 9'-4 4 5'-914/ C2 C3X5 B1 W8X21 B3 W8X21 DET. K DET. K 9'-4 P16 C3 C3X5 B5 W8X21B4 W8X21 DET. K 3212/ 438/438/ 1'-6 2 x BOLT 34/ "DIA A325 134/ PL 3.8 (FS) B6 W8X21 B3 W8X21B2 W8X21 112/2414/2112/ 3 W8X21W8X21 8 x BOLT 34/ "DIA A325 314/ *PRETENSIONED* 2- PL1"X6 X 1'-2 14/
  • 11.
    QTY. SITE BOLTSLENGTH 0 ISSUED TO SHOP 23/06/14 BW A ISSUED FOR APPROVAL 09/06/14 BW REV DESCRIPTION DATE BY ONE - BEAM - B2 CUSTOMER: DRAWN BY: DATE: (D/M/Y) PROJECT: DWG# GOVAN BROWN BW 09/06/14 RBC MAPLE EDMONTON B2 CHECKED BY:DATE: (D/M/Y) REV# 0HOLES: 13/16" Ø U.N.O. PAINT: 1 CT GREY PRIMER JOB# 1233 ALL STEEL CRAFT PHONE: (780) 478-6668 FAX: (780) 478-6677 FABRICATORS LTD. MARK QTY DESCRIPTION LENGTH WEIGHT REMARKS MATL ABM# B2 1 B2 1 W8X21 9'-4 3/4" 196 350W 0BEAM P11 3 PL3/8"X5 3/4" 7 7/16" 12 350W P14 1 PL1"X6" 1'-2 1/4" 24 350W TOTAL WEIGHT THIS DRAWING 232 GRID LOC T.O.S. ELEVATIONREF DWGQTY -10"E11 12/ 12/ 12/12/ 9'-534/ (W8X21 x 9'-4 34/ ) 38/ 45° GTSM 516/ 516/ B2 P14 3- P11 (N/S) A A D D B B B B 8'-1014/ 8'-1014/ 0 4 9'-214/ 112/ 112/ 2'-178/ 2'-178/ 0 1'-6 3'-778/ 2'-1 5'-878/ P14 B2 3- P11 1'-1 5'-234/ 1'-0 4'-134/ 6 3'-134/ 1'-0 2'-734/ 1'-734/ 1'-734/ 0 114/ 114/ 10 x 716/ Ø B2 P14 3- P11 218/ 114/ 414/ 112/ 438/ 3212/ 14/ 14/ 3 SIDES P11 B2 B - B 312/414/2 112/ 112/ 112/ P14 B2 A - A
  • 12.
    QTY. SITE BOLTSLENGTH 3/4"Ø HILTI_HIT1508 10" 3/4"Ø A325N4 2 1/4" 0 ISSUED TO SHOP 23/06/14 BW A ISSUED FOR APPROVAL 09/06/14 BW REV DESCRIPTION DATE BY ONE - HANGER - C4 CUSTOMER: DRAWN BY: DATE: (D/M/Y) PROJECT: DWG# GOVAN BROWN BW 09/06/14 RBC MAPLE EDMONTON C4 CHECKED BY:DATE: (D/M/Y) REV# 0HOLES: 13/16" Ø U.N.O. PAINT: 1 CT GREY PRIMER JOB# 1233 ALL STEEL CRAFT PHONE: (780) 478-6668 FAX: (780) 478-6677 FABRICATORS LTD.MARK QTY DESCRIPTION LENGTH WEIGHT REMARKS MATL ABM# C4 1 C4 1 C3X5 3" 1 300W 0HANGER L2 1 C3X5 4 15/16" 2 300W P9 1 PL3/8"X1 1/2" 3 7/8" 1 350W P16 1 PL3/8"X3" 6 7/16" 2 350W P17 1 PL1/2"X11" 1'-2 1/16" 19 350W P20 1 PL1/2"X7" 7" 7 350W TOTAL WEIGHT THIS DRAWING 31 GRID LOC REF DWGQTY E11 1316/ 12 12 1 916/ 1316/ 4 1516/2 14/ 112/ 23 8/C U T 4 12/312/ 31516/ 2 4 4 3 34/34/ 14/ 14/ 14/ 14/ 14/ PP 14/ 45° PP 316/ 45° 45° PP BB CC A A P17 P16 C4 P9 L2 P20 5 3 2 234/ 114/ 6716/ 14/ 21516/ 34/ 3 78/ 3 8/ 12 12 45° PP 45° PP 14/ 14/ 4 SIDES P17 P20 P9 P16 C4 A - A 234/114/ 112/4112/ 112/ 232 P20 L2 P9 P16 C4 4 X (1 116/ "x1316/ ") SLOTS B - B 1'-2116/ 2552 32 4 7 59 112/ 4 4 112/ 2 P17 6 X (1 34/ "x1316/ ") SLOTS 2 X (1316/ "x1 34/ ") SLOTS C4 P16 P9 L2 C - C
  • 13.
    0 ISSUED FORCONSTRUCTION 22/10/2013 BW A ISSUED FOR APPROVAL 18/10/2013 BW REV DESCRIPTION DATE BY CUSTOMER: DRAWN BY: DATE: (D/M/Y) PROJECT: DWG# CANBIAN BW 08/10/13 ROYAL NORTH CENTER EM1 CHECKED BY:DATE: (D/M/Y) IC3D REV# 0HOLES: 13/16" Ø U.N.O. PAINT: JOB# 1112 ALL STEEL CRAFT PHONE: (780) 478-6668 FAX: (780) 478-6677 FABRICATORS LTD. 3 4 1 2 A 6 5 EDCB KJHGF DETAIL 5CX2 (10 LOCATIONS) DETAIL 5BX2 (16 LOCATIONS) DETAIL 5B2 (4 LOCATIONS) DETAIL 5C2 (8 LOCATIONS) DETAIL 6A (12 LOCATIONS) DETAIL 6AX (2 LOCATIONS) DETAIL 5B (4 LOCATIONS) DETAIL 5BX (2 LOCATIONS) DETAIL 5C (4 LOCATIONS) A - A DETAIL 5C3 (ONE LOCATION) B - B C - C SSPC-SP3, SHOP GREY PRIMER U/ N CUST REF DWG: S1- S7 R0 7 18'-2 20'-0 SEE DWG EM2 NOTES: 1) TOP OF CONCRETE SLAB ELEV= 100'-0 2) SEE PLAN FOR BASE PLATE DETAIL MARK 3) SEE DWG'S EM2 & EM3 FOR U/SIDE BASE PLATE ELEV'S 4) SEE PLANS FOR X, Y COORDINATES (ORIGIN GRID 6/A) 5) ALL ANCHOR BOLTS ASTM F1554-36 ANCHOR BOLT & FOUNDATION PLAN H SS5X5X3 8/ (C 5.6 ) SEE D ETAIL 5BX2 X= 107'-5 Y= 74'-11 H SS6X6X1 4/ (C 6.4 ) SEE D ETAIL 6A X= 23'-3 Y= 25'-7 H SS6X6X1 4/ (C 6.4 ) SEE D ETAIL 6A X= 23'-3 Y= 7'-7 H SS5X5X3 16 / (C 5.3 ) SEE D ETAIL 5C 2 X= 46'-3 Y= 7'-7 H SS6X6X1 4/ (C 6.4 ) SEE D ETAIL 6A X= 46'-3 Y= 25'-7 H SS6X6X1 4/ (C 6.4 ) SEE D ETAIL 6A X= 46'-3 Y= 50'-3 H SS5X5X3 16 / (C 5.3 ) SEE D ETAIL 5B2 X= 0'-7 Y= 25'-7 H SS5X5X3 16 / (C 5.3 ) SEE D ETAIL 5C 2 X= 69'-3 Y= 7'-7 H SS5X5X3 8/ (C 5.6 ) SEE D ETAIL 5C X2 X= 69'-3 Y= 15'-7 H SS5X5X3 8/ (C 5.6 ) SEE D ETAIL 5BX2 X= 89'-3 Y= 15'-7 H SS5X5X3 8/ (C 5.6 ) SEE D ETAIL 5BX2 X= 83'-10 Y= 15'-7 H SS6X6X3 8/ (C 6.6 ) SEE D ETAIL 6AX X= 89'-3 Y= 25'-7 H SS6X6X3 8/ (C 6.6 ) SEE D ETAIL 6AX X= 69'-3 Y= 25'-7 H SS6X6X1 4/ (C 6.4 ) SEE D ETAIL 6A X= 69'-3 Y= 50'-3 H SS6X6X1 4/ (C 6.4 ) SEE D ETAIL 6A X= 89'-3 Y= 50'-3 H SS5X5X3 8/ (C 5.6 ) SEE D ETAIL 5BX2 X= 48'-1 Y= 74'-11 H SS5X5X3 8/ (C 5.6 ) SEE D ETAIL 5BX2 X= 44'-5 Y= 74'-11 H SS5X5X3 16 / (C 5.3 ) SEE D ETAIL 5B X= 89'-3 Y= 74'-4 H SS5X5X3 8/ (C 5.6 ) SEE D ETAIL 5BX X= 79'-2 Y= 74'-4 H SS5X5X3 8/ (C 5.6 ) SEE D ETAIL 5C X2 X= 79'-2 Y= 79'-8 H SS5X5X3 8/ (C 5.6 ) SEE D ETAIL 5C X2 X= 67'-4 Y= 74'-11 H SS5X5X3 8/ (C 5.6 ) SEE D ETAIL 5C X2 X= 67'-4 Y= 79'-8 7 24'-8 6'-5 21'-2 23'-0 725'-08'-0 25'-3 H SS5X5X3 8/ (C 5.6 ) SEE D ETAIL 5BX2 X= 0'-7 Y= 42'-3 H SS5X5X3 16 / (C 5.3 ) SEE D ETAIL 5C X= 69'-3 Y= 51'-43 4/ H SS5X5X3 16 / (C 5.3 ) SEE D ETAIL 5B2 X= 23'-3 Y= 0'-7 H SS5X5X3 16 / (C 5.3 ) SEE D ETAIL 5C 2 X= 46'-3 Y= 0'-7 H SS6X6X1 4/ (C 6.4 ) SEE D ETAIL 6A X= 23'-3 Y= 50'-3 7'-018'-0 7 8'-0 14'-8 16'-8 7'-08'-010'-0 GRID LINE 6/A (X=0 Y=0) H SS5X5X3 8/ (C 5.6 ) SEE D ETAIL 5C X2 X= 0'-7 Y= 0'-7 H SS5X5X3 8/ (C 5.6 ) SEE D ETAIL 5BX2 X= 8'-7 Y= 0'-7 24'-8 7 3'-0 19'-8 23'-3 30'-9 7 25'-35'-6 H SS5X5X3 8/ (C 5.6 ) SEE D ETAIL 5BX2 X= 0'-7 Y= 50'-3 H SS5X5X3 8/ (C 5.6 ) SEE D ETAIL 5BX X= 23'-3 Y= 74'-11 H SS5X5X3 8/ (C 5.6 ) SEE D ETAIL 5BX2 X= 23'-3 Y= 81'-0 H SS5X5X3 8/ (C 5.6 ) SEE D ETAIL 5C X2 X= 0'-7 Y= 81'-0 H SS5X5X3 8/ (C 5.6 ) SEE D ETAIL 5BX2 X= 3'-7 Y= 81'-0 7 14'-7 5'-5 8'-0 7 7 3 1'-134/9'-015'-114/ 1'-11 1'-10 1'-10 11'-10 4'-9 23'-0 4'-2 H SS5X5X3 16 / (C 5.3 ) SEE D ETAIL 5C 3 X= 75'-8 Y= 51'-43 4/ H SS5X5X3 16 / (C 5.3 ) SEE D ETAIL 5C X= 69'-3 Y= 60'-43 4/ H SS5X5X3 16 / (C 5.3 ) SEE D ETAIL 5C X= 75'-8 Y= 60'-43 4/ 3'-8 19'-3 7 7 6'-5 9'-11 10'-1 5'-4 20'-0 1'-2 15'-0 7 4'-0 6'-612/ 18'-112/8'-0 3'-6 2'-0 23'-0 H SS5X5X3 8/ (C 5.6 ) SEE D ETAIL 5BX2 X= 153'-3 Y= 79'-0 H SS5X5X3 8/ (C 5.6 ) SEE D ETAIL 5BX2 X= 201'-11 Y= 43'-81 2/ H SS5X5X3 8/ (C 5.6 ) SEE D ETAIL 5C X2 X= 201'-11 Y= 51'-81 2/ H SS5X5X3 8/ (C 5.6 ) SEE D ETAIL 5BX2 X= 178'-3 Y= 25'-7 H SS6X6X1 4/ (C 6.4 ) SEE D ETAIL 6A X= 178'-3 Y= 50'-3 H SS5X5X3 16 / (C 5.3 ) SEE D ETAIL 5B X= 178'-3 Y= 72'-5 H SS5X5X3 16 / (C 5.3 ) SEE D ETAIL 5C X= 199'-4 Y= 72'-5 H SS5X5X3 16 / (C 5.3 ) SEE D ETAIL 5B X= 199'-4 Y= 51'-81 2/ H SS5X5X3 16 / (C 5.3 ) SEE D ETAIL 5B2 X= 178'-3 Y= 79'-0 H SS5X5X3 16 / (C 5.3 ) SEE D ETAIL 5C 2 X= 132'-3 Y= 17'-7 H SS5X5X3 16 / (C 5.3 ) SEE D ETAIL 5C 2 X= 132'-3 Y= 25'-7 H SS6X6X1 4/ (C 6.4 ) SEE D ETAIL 6A X= 132'-3 Y= 50'-3 H SS5X5X3 16 / (C 5.3 ) SEE D ETAIL 5B2 X= 155'-3 Y= 25'-7 H SS5X5X3 8/ (C 5.6 ) SEE D ETAIL 5BX2 X= 170'-3 Y= 25'-7 H SS6X6X1 4/ (C 6.4 ) SEE D ETAIL 6A X= 155'-3 Y= 50'-3 H SS5X5X3 8/ (C 5.6 ) SEE D ETAIL 5C X2 X= 132'-3 Y= 74'-11 H SS5X5X3 8/ (C 5.6 ) SEE D ETAIL 5C X2 X= 132'-3 Y= 79'-0 H SS5X5X3 16 / (C 5.3 ) SEE D ETAIL 5C 2 X= 109'-3 Y= 15'-7 H SS5X5X3 16 / (C 5.3 ) SEE D ETAIL 5C 2 X= 109'-3 Y= 17'-7 H SS6X6X1 4/ (C 6.4 ) SEE D ETAIL 6A X= 109'-3 Y= 25'-7 H SS6X6X1 4/ (C 6.4 ) SEE D ETAIL 6A X= 109'-3 Y= 50'-3 H SS5X5X3 8/ (C 5.6 ) SEE D ETAIL 5BX2 X= 111'-1 Y= 74'-11 H SS5X5X3 16 / (C 5.3 ) SEE D ETAIL 5B X= 109'-3 Y= 74'-4 H SS5X5X3 8/ (C 5.6 ) SEE D ETAIL 5C X2 X= 111'-3 Y= 79'-8 73 72'-0 2'-78'-0 SEE DWG EM3 21'-0 2'-0 1'-10 1'-10 23'-0 3'-10 74'-2 2'-0 74'-9 21'-0 4'-1 73'-6 23'-0 8'-0 23'-8 7 7 H SS5X5X3 16 / (C 5.3 ) SEE D ETAIL 5C 2 X= 201'-11 Y= 25'-7 21'-1 20'-812/3'-1 6'-7 3'-13'-6 24'-3 H SS5X5X3 8/ (C 5.6 ) SEE D ETAIL 5BX2 X= 157'-3 Y= 79'-0 21'-0 2'-7 7 1'-512/ 3'-2 412/2 412/ 2 3234/ 3 234/ A A 2- AB2 PL1"X9 12/ X 0'-9 12/ 412/ 412/ A A 2- AB2PL1"X6 X 1'-1 4 4 B B 2- AB1PL34/ "X6 X 0'-11 112/ 4 3 3 4112/ 33 B B 2- AB1 PL34/ "X8 12/ X 0'-8 12/ 44 4 4 PL34/ "X11 X 0'-11 4- AB1 412/412/ 412/ 412/ A A 4- AB2 PL1"X13 X 1'-1 44 112/ 112/ B B 4- AB1 PL34/ "X6 X 0'-11 134/ 134/ 412/412/ 4- AB2 A APL1"X7 12/ X 1'-1 112/43 3 4 112/ 112/3112/ 112/ 112/ 3 112/ 112/ 4- AB1 PL34/ "X8 12/ X 0'-8 12/ 1'-812/ 412/PROJ 1GROUT TYP ANCHOR SETTING FOR AB2 SEE DETAILS FOR QTY REQ'D & BOLT PATTERN DIM'S AB2 - ROD1 14/ X 1'-8 12/ SEE DETAIL FOR PL SIZE SEE PLAN FOR SIZE 112/ 112/ 4 3 112/ 3 112/ 345 112/3112/ 112/ C C 4- AB1 PL34/ "X8 12/ X 1'-0 H SS5X5X3 16 / SH O P W ELD ED ELEVATO R FR AM E H SS5X5X3 8/ 1'-4 312/ 4PROJ 1GROUT TYP ANCHOR SETTING FOR AB1 SEE DETAILS FOR QTY REQ'D & BOLT PATTERN DIM'S AB1 - ROD34/ X 1'-6 14/ SEE DETAIL FOR PL SIZE SEE PLAN FOR SIZE 138/ 158/ 4 312/ 6 4 4PROJ 1GROUT L4X4X38/ AB1 - ROD34/ X 1'-6 14/ HSS5X5X316/HSS5X5X38/ ELEVATOR DOOR FRAME
  • 14.
    0 ISSUED FORCONSTRUCTION 22/10/2013 BW A ISSUED FOR APPROVAL 18/10/2013 BW REV DESCRIPTION DATE BY CUSTOMER: DRAWN BY: DATE: (D/M/Y) PROJECT: DWG# CANBIAN BW 15/10/13 ROYAL NORTH CENTER EM2 CHECKED BY:DATE: (D/M/Y) IC3D REV# 0HOLES: 13/16" Ø U.N.O. PAINT: JOB# 1112 ALL STEEL CRAFT PHONE: (780) 478-6668 FAX: (780) 478-6677 FABRICATORS LTD. A 2 1 B C D E 5 4 3 F 6 412/ 4 4 4412/ 24'-1 4 44 412/412/ 412/ 3 3 7 4 7 25'-3 112/ 112/ 6'-5 9'-0 112/ 112/ 112/ 112/ 1'-8 34'-9 3 1'-11 24'-8 1'-101'-10 30'-9 23'-0 11'-10 2- AB2 2- AB1 4- AB1 U /S B PL ELEV= 100'-1 SEE D ETAIL 5C X2 X= 67'-4 Y= 79'-8 U /S B PL ELEV= 100'-1 SEE D ETAIL 5BX2 X= 48'-1 Y= 74'-11 U /S B PL ELEV= 99'-8 SEE D ETAIL 6A X= 69'-3 Y= 50'-3 U /S B PL ELEV= 100'-1 SEE D ETAIL 5C 2 X= 69'-3 Y= 7'-7 U /S B PL ELEV= 100'-1 SEE D ETAIL 5C X= 75'-8 Y= 60'-43 4/ U /S B PL ELEV= 100'-1 SEE D ETAIL 5C X= 69'-3 Y= 60'-43 4/ U /S B PL ELEV= 100'-1 SEE D ETAIL 5B X= 109'-3 Y= 74'-4 U /S B PL ELEV= 100'-1 SEE D ETAIL 5C 2 X= 109'-3 Y= 17'-7 U /S B PL ELEV= 99'-1 SEE D ETAIL 6A X= 109'-3 Y= 25'-7 U /S B PL ELEV= 99'-1 SEE D ETAIL 6A X= 109'-3 Y= 50'-3 U /S B PL ELEV= 100'-1 SEE D ETAIL 5BX2 X= 111'-1 Y= 74'-11 U /S B PL ELEV= 100'-1 SEE D ETAIL 5BX2 X= 107'-5 Y= 74'-11 U /S B PL ELEV= 100'-1 SEE D ETAIL 5B2 X= 23'-3 Y= 0'-7 22'-8 14'-8 10'-0 18'-0 725'-0 4- AB1 4- AB1 GRID LINE 6/A (X=0 Y=0) U /S B PL ELEV= 99'-1 SEE D ETAIL 6A X= 23'-3 Y= 7'-7 U /S B PL ELEV= 100'-1 SEE D ETAIL 5C 2 X= 46'-3 Y= 7'-7 U /S B PL ELEV= 99'-1 SEE D ETAIL 6A X= 46'-3 Y= 25'-7 U /S B PL ELEV= 99'-1 SEE D ETAIL 6A X= 46'-3 Y= 50'-3 U /S B PL ELEV= 100'-1 SEE D ETAIL 5B2 X= 0'-7 Y= 25'-7 U /S B PL ELEV= 99'-1 SEE D ETAIL 6A X= 23'-3 Y= 50'-3 U /S B PL ELEV= 99'-1 SEE D ETAIL 6A X= 23'-3 Y= 25'-7 U /S B PL ELEV= 100'-1 SEE D ETAIL 5BX2 X= 0'-7 Y= 42'-3 U /S B PL ELEV= 100'-1 SEE D ETAIL 5BX2 X= 0'-7 Y= 50'-3 U /S B PL ELEV= 100'-1 SEE D ETAIL 5BX2 X= 8'-7 Y= 0'-7 U /S B PL ELEV= 100'-1 SEE D ETAIL 5C X2 X= 0'-7 Y= 0'-7 U /S B PL ELEV= 100'-1 SEE D ETAIL 5C 2 X= 46'-3 Y= 0'-7 412/ 412/ 7 8'-0 412/ 412/ 7'-08'-0 2- AB2 2- AB2 7 3 25'-3 44412/412/412/412/ 16'-88'-0 2- AB2 2- AB2 2- AB1 3 3 4 4 4 4 44 4 4 4 4 7'-0 2- AB1 4- AB1 2- AB1 2- AB1 4 4 44 44 4 4 4 4 4 4 44 44 24'-8 4- AB1 4- AB1 5'-6 23'-3 19'-8 2- AB2 2- AB2 2- AB2 2- AB2 U /S B PL ELEV= 100'-1 SEE D ETAIL 5C X2 X= 67'-4 Y= 74'-11 U /S B PL ELEV= 100'-1 SEE D ETAIL 5BX2 X= 44'-5 Y= 74'-11 U /S B PL ELEV= 100'-1 SEE D ETAIL 5BX X= 23'-3 Y= 74'-11 U /S B PL ELEV= 100'-1 SEE D ETAIL 5BX2 X= 3'-7 Y= 81'-0 U /S B PL ELEV= 100'-1 SEE D ETAIL 5C X2 X= 0'-7 Y= 81'-0 U /S B PL ELEV= 100'-1 SEE D ETAIL 5BX2 X= 23'-3 Y= 81'-0 412/ 5'-310 412/ 10 6'-1 412/ 412/ 7 3'-0 2- AB2 3 412/ 412/ 412/ 7 412/ 412/ 412/ 412/ 1'-10 1'-10 134/ 134/ 8 412/412/ 1'-75 6 412/ 412/ 3 23'-0 21'-2 3'-8 19'-3 4- AB2 2- AB2 2- AB2 412/ 72'-07'-5 412/ 4- AB2 4- AB2 4- AB2 4- AB1 FORCONTINUATIONSEEDWGEM3 REF. DWG EM1 ENLARGED ANCHOR BOLT SETTING PLAN U /S B PL ELEV= 100'-1 SEE D ETAIL 5BX2 X= 89'-3 Y= 15'-7 U /S B PL ELEV= 100'-1 SEE D ETAIL 5BX2 X= 83'-10 Y= 15'-7 U /S B PL ELEV= 99'-1 SEE D ETAIL 6AX X= 89'-3 Y= 25'-7 U /S B PL ELEV= 99'-1 SEE D ETAIL 6AX X= 69'-3 Y= 25'-7 U /S B PL ELEV= 99'-1 SEE D ETAIL 6A X= 89'-3 Y= 50'-3 U /S B PL ELEV= 100'-1 SEE D ETAIL 5C X2 X= 69'-3 Y= 15'-7 U /S B PL ELEV= 100'-1 SEE D ETAIL 5C 3 X= 75'-8 Y= 51'-43 4/ U /S B PL ELEV= 100'-1 SEE D ETAIL 5C X= 69'-3 Y= 51'-43 4/ U /S B PL ELEV= 100'-1 SEE D ETAIL 5C 2 X= 109'-3 Y= 15'-7 4 412/412/412/ 412/ 14'-7 5'-5 78'-03 2- AB2 2- AB2 4 4 44412/412/ 412/ 4 4 112/ 112/ 112/ 112/ 1'-134/ 112/112/ 112/112/ 4- AB1 4- AB1 4- AB1 412/ 4 4 4 4 4 4 3 SSPC-SP3, SHOP GREY PRIMER U/ N 2- AB1 2- AB1 412/412/ 412/ 412/ 44 4 4 4- AB1 20'-0 18'-2 4- AB1 2- AB2 2- AB2 U /S B PL ELEV= 100'-1 SEE D ETAIL 5B X= 89'-3 Y= 74'-4 U /S B PL ELEV= 100'-1 SEE D ETAIL 5BX X= 79'-2 Y= 74'-4 U /S B PL ELEV= 100'-1 SEE D ETAIL 5C X2 X= 79'-2 Y= 79'-8 U /S B PL ELEV= 100'-1 SEE D ETAIL 5C X2 X= 111'-3 Y= 79'-8 6'-5 3'-6 4 15'-114/ 112/ 112/ 4 412/412/ 134/134/ 112/112/ 4 4 410 2'-0 9'-8 3 1'-24'-9 412/ 412/ 3 3'-1110 9'-11 1'-2 20'-0 5'-4 10'-1 4- AB2 2- AB2 4- AB1 4- AB1 412/ 412/ 74'-9 74'-2 1'-8 4 412/ 412/ 4 4 412/ 412/ 3'-113 2'-0 3'-10
  • 15.
    0 ISSUED FORCONSTRUCTION 22/10/2013 BW A ISSUED FOR APPROVAL 18/10/2013 BW REV DESCRIPTION DATE BY CUSTOMER: DRAWN BY: DATE: (D/M/Y) PROJECT: DWG# CANBIAN BW 16/10/13 ROYAL NORTH CENTER EM3 CHECKED BY:DATE: (D/M/Y) IC3D REV# 0HOLES: 13/16" Ø U.N.O. PAINT: JOB# 1112 ALL STEEL CRAFT PHONE: (780) 478-6668 FAX: (780) 478-6677 FABRICATORS LTD. 2 1 3 F G H J K 4 SSPC-SP3, SHOP GREY PRIMER U/ N 7 3'-2 24'-1 412/ 25'-3 23'-0 15'-0 1'-101'-10 20'-812/ 21'-0 ENLARGED ANCHOR BOLT SETTING PLAN 4- AB1 2- AB2 U /S B PL ELEV= 99'-1 SEE D ETAIL 6A X= 155'-3 Y= 50'-3 U /S B PL ELEV= 100'-1 SEE D ETAIL 5B2 X= 155'-3 Y= 25'-7 U /S B PL ELEV= 100'-1 SEE D ETAIL 5BX2 X= 157'-3 Y= 79'-0 U /S B PL ELEV= 100'-1 SEE D ETAIL 5B X= 178'-3 Y= 72'-5 U /S B PL ELEV= 100'-1 SEE D ETAIL 5BX2 X= 153'-3 Y= 79'-0 8'-024'-8 25'-3 2'-78'-0 2- AB1 2- AB1 4- AB1 2- AB1 FORCONTINUATIONSEEDWGEM2 SEE D ETAIL 6A X= 109'-3 Y= 50'-3 SEE D ETAIL 6A X= 109'-3 Y= 25'-7 SEE D ETAIL 5C 2 X= 109'-3 Y= 17'-7 SEE D ETAIL 5C 2 X= 109'-3 Y= 15'-7 U /S B PL ELEV= 99'-1 SEE D ETAIL 6A X= 132'-3 Y= 50'-3 U /S B PL ELEV= 100'-1 SEE D ETAIL 5C 2 X= 132'-3 Y= 25'-7 U /S B PL ELEV= 100'-1 SEE D ETAIL 5C 2 X= 132'-3 Y= 17'-7 412/412/ 412/ 412/ 72'-0 4 4 4 4 7 10'-0 44 4 4 4 3 4 4 4 4 4 44 44 4 4 4 4 3'-6 23'-0 23'-0 21'-0 21'-0 4'-0 2- AB2 2- AB2 2- AB2 SEE D ETAIL 5C X2 X= 111'-3 Y= 79'-8 SEE D ETAIL 5B X= 109'-3 Y= 74'-4 SEE D ETAIL 5BX2 X= 107'-5 Y= 74'-11 SEE D ETAIL 5BX2 X= 111'-1 Y= 74'-11 U /S B PL ELEV= 100'-1 SEE D ETAIL 5C X2 X= 132'-3 Y= 79'-0 U /S B PL ELEV= 100'-1 SEE D ETAIL 5C X2 X= 132'-3 Y= 74'-11 74'-9 10 4'-2 74'-2 2'-0 3'-10 3 7 412/412/ 412/ 3 412/ 412/ 412/ 412/ 4'-1 2'-02'-0 7 23'-8 718'-112/8'-0 1'-512/6'-612/ 2- AB1 2- AB2 2- AB2 2- AB2 2- AB2 4- AB1 4- AB1 REF. DWG EM1 U /S B PL ELEV= 100'-1 SEE D ETAIL 5BX2 X= 170'-3 Y= 25'-7 U /S B PL ELEV= 99'-1 SEE D ETAIL 6A X= 178'-3 Y= 50'-3 U /S B PL ELEV= 100'-1 SEE D ETAIL 5BX2 X= 178'-3 Y= 25'-7U /S B PL ELEV= 100'-1 SEE D ETAIL 5B X= 199'-4 Y= 51'-81 2/U /S B PL ELEV= 100'-1 SEE D ETAIL 5C X2 X= 201'-11 Y= 51'-81 2/ U /S B PL ELEV= 100'-1 SEE D ETAIL 5BX2 X= 201'-11 Y= 43'-81 2/ U /S B PL ELEV= 100'-1 SEE D ETAIL 5C 2 X= 201'-11 Y= 25'-7 412/ 412/ 412/ 412/ 8'-0 44 4 4 10 4 4 7 7 10 412/412/ 44 412/ 412/112/ 112/ 2'-7 7 4 4 112/ 112/ 4 112/112/ 4 112/112/ 4 4 3 4'-1 3'-310 2 24'-3 6'-7 3'-13'-6 3'-1 21'-1 3'-2 4- AB1 4- AB1 2- AB1 U /S B PL ELEV= 100'-1 SEE D ETAIL 5B2 X= 178'-3 Y= 79'-0 U /S B PL ELEV= 100'-1 SEE D ETAIL 5C X= 199'-4 Y= 72'-5
  • 16.
    CUSTOMER: DRAWN BY: DATE:(D/M/Y) PROJECT: DWG# CANBIAN BW 18/10/13 ROYAL NORTH CENTER E1 CHECKED BY:DATE: (D/M/Y) IC3D REV# 0HOLES: 13/16" Ø U.N.O. PAINT: SSPC-SP3,SHOP GREY PRIMER JOB# 1112 ALL STEEL CRAFT PHONE: (780) 478-6668 FAX: (780) 478-6677 FABRICATORS LTD. 0 ISSUED FOR CONSTRUCTION 25/11/13 A ISSUED FOR APPROVAL 31/10/13 REV DESCRIPTION DATE BY 1 2 3 4 56 G F E D K J H C B A 1 2 3 D C B A 4 5 6 5 1 2 3 4 E D C G F SEE DWG E3 FOR LOW ROOF @ ELEV 118'-412/ SEE DWG E11 FOR RTU FRAMES SEE DWG E13 FOR STAIR & H/RAIL SEE DWG E8 FOR CANOPIES @ ELEV 124'-0 SEE DWG E14 FOR LADDERS SEE DWG E4 FOR ROOF @ ELEV 127'-112/ SEE DWG E5 FOR STAIR LANDINGS @ ELEV 106'-8 ROYAL NORTH CENTER ISOMETRIC VIEWS SEE DWG E2 FOR 2ND FLOOR @ ELEV 113'-8 SEE DWG EM1 - EM3 FOR ANCHOR BOLT PLAN SEE DWG E6 FOR WINDOW, SILL & HEADER FRAMING SEE DWG E5 FOR HIGH ROOF @ ELEV 131'-10 12/ SEE DWG E9 FOR CANOPIES @ ELEV 128'-0 SEE DWG E11 FOR RTU FRAMES SEE DWG E12 FOR STAIR & H/RAIL SEE DWG E5 FOR STAIR LANDINGS @ ELEV 106'-8 SEE DWG E4 FOR ROOF @ ELEV 127'-112/ SEE DWG E7 FOR VERT CROSS BRACING SEE DWG E14 FOR LADDERS SEE DWG E10 FOR ELEVATOR FRAMING SEE DWG E3 FOR LOW ROOF @ ELEV 118'-412/ SEE DWG E11 FOR RTU FRAMES SEE DWG E5 FOR HIGH ROOF @ ELEV 131'-10 12/ SEE DWG E6 FOR WINDOW, SILL & HEADER FRAMING SEE DWG E2 FOR 2ND FLOOR @ ELEV 113'-8 SEE DWG E9 FOR CANOPIES @ ELEV 128'-0 SEE DWG E3 FOR LOW ROOF @ ELEV 118'-412/ SEE DWG E7 FOR VERT CROSS BRACING SEE DWG E4 FOR ROOF @ ELEV 127'-112/ SEE DWG E14 FOR LADDERS
  • 17.
    CUSTOMER: DRAWN BY: DATE:(D/M/Y) PROJECT: DWG# CANBIAN BW 18/10/13 ROYAL NORTH CENTER E3 CHECKED BY:DATE: (D/M/Y) IC3D REV# 0HOLES: 13/16" Ø U.N.O. PAINT: SSPC-SP3,SHOP GREY PRIMER JOB# 1112 ALL STEEL CRAFT PHONE: (780) 478-6668 FAX: (780) 478-6677 FABRICATORS LTD. 0 ISSUED FOR CONSTRUCTION 25/11/13 A ISSUED FOR APPROVAL 31/10/13 REV DESCRIPTION DATE BY 6 CBA 1 2 3 4 5 D E2 1 2 3 G C KJH SECT. B / E3 122'-0"1/2 119'-5"1/2 118'-4"1/2 G SECT. C / E3 122'-0"1/2 119'-5"1/2 118'-4"1/2 B SECT. A / E3 124'-0 118'-4"1/2 SECT. D / E3 CUST REF DWG: S5 R0 7 7 8'-0 14'-8 A E2 C 2 H SS5X5X3 16 / H SS5X5X3 8/ (F1 ) F1 C O L BEN T H SS5X5X3 8/ C 6 H SS5X5X3 16 / SEE DWG E2 FOR TYP SECTIONS & DETAILS LOW ROOF FRAMING PLAN NOTES: 1) TOP OF STEEL ELEV= 118'-4 12/ U/NOTED (-338/ ) FOR JOIST SHOE DEPTH 2) ALL BOLTS 34/ A325 U/NOTED 3) SEE JOIST DWG'S FOR JOIST DETAILS 25'-0316/16'-71316/8'-030'-9 25'-35'-6 1'-15'-0 6'-2 LOOSEDECKLLINLENGTH=66'-1012/ 7 LOOSEDECKLLINLENGTH=80'-5 59 PL14/ "X6 B H SS4X4X3 16 / PO ST (ABO VE) B E2 H SS4X4X3 16 / PO ST (ABO VE) M2 LOOSE DECK L4X4X14/ FIELD CUT & WELD TO SUIT H SS5X5X3 8/ (F2 ) 7'-08'-010'-025'-3 B 11'-4 11'-4 6'-2 A E2 6'-0 TJ TJ C 3 H SS6X6X1 4/ C 4 H SS6X6X1 4/ B14W14X22(-338/) B7 W14X22 B11 W14X22 B1W16X26(-338/)C 1 H SS5X5X3 16 / B15 HSS7X5X38/ TOS EL= 119'-512/ SEE DWG E6 M2 LOOSE DECK L4X4X14/ FIELD CUT & WELD TO SUIT 16"_OWSJ 16"_OWSJ 16"_OWSJ 16"_OWSJ W14X22 ( F1 ) B12W14X22 B38 W8X18 B32 W12X19 B31 W8X18 16"_OWSJ 3'-63'-66'-06'-06'-2 TJ 1'-614/ 3'-4 1'-114/ 6'-26'-26'-112/6'-212/ F27 C4X4.5 ( RTU-1 ) DET. RTU-1 E11 M3 LADDER SEE DWG E14 58 PL14/ "X6 A TJTJ C 5 H SS6X6X1 4/ B18W16X36(-338/) B2W14X22(-338/) F2 C O L BEN T H SS5X5X3 8/ B19 HSS7X5X38/ TOS EL= 119'-512/ SEE DWG E6 M2 LOOSE DECK L4X4X14/ FIELD CUT & WELD TO SUIT 16"_OWSJ 16"_OWSJ 16"_OWSJ W14X22(F2)(-338/) M2 LOOSE DECK L4X4X14/ FIELD CUT & WELD TO SUIT 16"_OWSJ 16"_OWSJ 1'-614/ A E2 C 8 H SS6X6X1 4/ C 7 H SS5X5X3 16 / B39 HSS7X5X38/ TOS EL= 119'-512/ SEE DWG E6 B42W14X22 F6 HSS7X5X38/ TOS EL= 116'-1112/ SEE DWG E6 C 9 H SS6X6X1 4/ 5'-8 5'-8 6'-2 1'-05'-1 23'-3 23'-0 3'-0 19'-8 CANOPY ABOVE SEE DWG E8 B3W18X40(-338/) H SS5X5X3 8/ F5 C O L BEN T H SS5X5X3 8/ H SS5X5X3 8/ (F5 ) B22W16X36(-338/) B6 W14X22 B23 HSS7X5X38/ TOS EL= 119'-512/ SEE DWG E6 16"_OWSJ B4 W14X22 H SS4X4X3 16 / PO ST (ABO VE) B28 HSS7X5X38/ TOS EL= 116'-1112/ SEE DWG E6 B10 W14X22 H SS5X5X3 8/ (F3 ) F3 C O L BEN T H SS5X5X3 8/ F4 H SS5X5X3 8/ H SS4X4X3 16 / PO ST (ABO VE) H SS4X4X3 16 / PO ST (ABO VE) B5W14X22 W14X22 B8W14X22 H SS4X4X3 16 / PO ST (ABO VE) H SS4X4X3 16 / PO ST (ABO VE) B8W14X22 B47 HSS7X5X38/ TOS EL= 116'-1112/ SEE DWG E6 5'-8 5'-9 21'-0 4'-6 LOOSE DECK L LIN LENGTH= 69'-3 23'-0 M3 LADDER SEE DWG E14 F13 C O L BEN T H SS5X5X3 8/ H SS4X4X3 16 / PO ST (ABO VE) B148 W14X22 C 32 H SS5X5X3 16 / 24'-8 25'-3 B23 HSS7X5X38/ TOS EL= 119'-512/ SEE DWG E6 724'-8 25'-3 B23 HSS7X5X38/ TOS EL= 119'-512/ SEE DWG E6 B144W14X22 B59 HSS5X5X14/ TOS EL= 116'-1112/ SEE DWG 56 C 33 H SS6X6X1 4/ 1'-03'-1 4'-1 3'-6 H SS5X5X3 8/ (F13 ) B144W14X22 B28 HSS7X5X38/ TOS EL= 116'-1112/ SEE DWG E6 3'-1 5'-11 20'-112'-1012/ 2'-7 5'-6 24'-3 H SS4X4X3 16 / PO ST (ABO VE) H SS4X4X3 16 / PO ST (ABO VE) 18"_OWSJ B172W8X18 C 39 H SS5X5X3 16 / C 40 H SS5X5X3 16 / 6 5'-9 15'-0 DET. RTU-7 E11 F42 C4X4.5 ( RTU-7 ) SEE DWG E2 FOR TYP SECTIONS & DETAILS LOW ROOF FRAMING PLAN NOTES: 1) TOS ELEV & U/SIDE DECK ELEV= 118'-412/ U/NOTED "(-338/ )"" FOR JOIST SHOE DEPTH 2) ROOF SLOPE & LOW POINT ELEV NOTED ON PLAN 3) ALL BOLTS 34/ A325 U/NOTED 4) SEE JOIST DWG'S FOR JOIST DETAILS B171 W14X22 M2 LOOSE DECK L4X4X14/ FIELD CUT & WELD TO SUIT TJ B158 W8X18 (-338/ ) C 34 H SS5X5X3 16 / B153 W16X26 (-338/ ) 6 5'-0 DET. RTU-6 E11 F41 C4X4.5 ( RTU-6 ) ROOF lLOW POINT -3 U/S DECK EL= 118'-1 12/ TJ 18"_OWSJ 18"_OWSJ 18"_OWSJ 18"_OWSJ 18"_OWSJ 18"_OWSJ 18"_OWSJ B159 W16X36 (-338/ ) C 35 H SS6X6X1 4/ B154 W18X40 (-338/ ) 4'-6 4'-6 4'-6 3'-012/ 5'-9 5'-9 3'-012/ 5 8'-0 18'-2 W14X22 ( F15 ) (-338/ ) F15 C O L BEN T H SS5X5X3 8/ H SS5X5X3 8/ (F15 ) TJ B166 W14X22 (-338/ ) 3'-012/ 6 5'-9 5'-11 5'-11 5'-11 DET. RTU-8 E11 F43 C4X4.5 ( RTU-8 ) TJ ROOF lLOW POINT -3 U/S DECK EL= 118'-1 12/ TJ 18"_OWSJ 18"_OWSJ 18"_OWSJ 18"_OWSJ B173 W8X18 B170 W14X22 B169 W14X22 B168W14X22 B167 W16X36 (-338/ ) C 36 H SS6X6X1 4/ 5'-9 11'-6 25'-0 21'-2 712/ 2'-0 23'-0 H SS4X4X3 16 / PO ST (ABO VE) H SS4X4X3 16 / PO ST (ABO VE) H SS4X4X3 16 / PO ST (ABO VE) H SS4X4X3 16 / PO ST (ABO VE) H SS4X4X3 16 / PO ST (ABO VE) H SS4X4X3 16 / PO ST (ABO VE) H SS4X4X3 16 / PO ST (ABO VE) H SS4X4X3 16 / PO ST (ABO VE) H SS4X4X3 16 / PO ST (ABO VE) CANOPY ABOVE SEE DWG E8 D E2 B E2 A E2 M2 LOOSE DECK L4X4X14/ FIELD CUT & WELD TO SUIT W14X22 H SS5X5X3 8/ (F14 ) F14 C O L BEN T H SS5X5X3 8/ TJ 18"_OWSJ 18"_OWSJ 18"_OWSJ C 38 H SS5X5X3 16 / B161 W14X22 B164 W14X22 B163 W14X22 B165 W14X22 (-338/ ) B156W14X22 C 37 H SS5X5X3 16 / B162W14X22 B157W14X22 B157W14X22 B152 W14X22 B155W14X22 B155W14X22 B150W14X22 B149W14X22 5'-9 5'-9 LOOSE DECK L LIN LENGTH= 20'-11 78/ 6'-6 1'-512/ 6'-75'-012/ 18'-112/8'-0 7 7 CANOPY ABOVE SEE DWG E8 D E2 H SS4X4X3 16 / PO ST (ABO VE) H SS4X4X3 16 / PO ST (ABO VE) H SS5X5X3 8/ (F16 ) H SS4X4X3 16 / PO ST (ABO VE) F16 C O L BEN T H SS5X5X3 8/ H SS4X4X3 16 / PO ST (ABO VE) W14X22 H SS4X4X3 16 / PO ST (ABO VE) B174W14X22C 41 H SS5X5X3 16 / 338/ 3 SEE PLAN FOR SIZE & MARK SEE PLAN FOR SIZE & MARK M2 DECK L4X4X14/ SHOP WELDED TO BEAM WT4X9 1'-12'-7 SEE PLAN FOR SIZE & MARK HSS7X5X38/ U/SIDE EL= 122'-012/ SEE DWG E6 DECK L4X4X14/ SHOP WELDED TO BEAM HSS7X5X38/ TOS EL= 119'-512/ SEE DWG E6 338/ 3 2'-71'-1 OWSJ (BY OTHERS) HSS7X5X38/ TOS EL= 119'-512/ SEE DWG E6 SEE PLAN FOR SIZE & MARK LOOSE DECK L4X4X14/ SEE PLAN FOR LIN LENGTH REQ'D FIELD CUT FROM STOCK LENGTHS AS REQ'D HSS7X5X38/ U/SIDE EL= 122'-012/ SEE DWG E6 5'-712/ 5'-1112/ HSS4X4X316/ SHOP WELDED TO BEAM CANOPY FRAMING SEE DWG Exx
  • 18.
    CUSTOMER: DRAWN BY: DATE:(D/M/Y) PROJECT: DWG# CANBIAN BW 18/10/13 ROYAL NORTH CENTER E4 CHECKED BY:DATE: (D/M/Y) IC3D REV# 0HOLES: 13/16" Ø U.N.O. PAINT: SSPC-SP3,SHOP GREY PRIMER JOB# 1112 ALL STEEL CRAFT PHONE: (780) 478-6668 FAX: (780) 478-6677 FABRICATORS LTD. 0 ISSUED FOR CONSTRUCTION 25/11/13 A ISSUED FOR APPROVAL 31/10/13 REV DESCRIPTION DATE BY 1 2 3 4 5 GFEDCB A E2 A E2 127'-1"1/2 1 SECT. A / E4 CUST REF DWG: S7 R0 LOOSE DECK L LIN LENGTH= 46'-5 12/ 2'-77'-1134/24'-814/24'-87 75'-75'-8 M3 LADDER SEE DWG E14 A E2 NOTES: 1) TOS ELEV & U/SIDE DECK ELEV= 127'-112/ U/NOTED "(-338/ )" FOR JOIST SHOE DEPTH 2) ROOF SLOPE & LOW POINT ELEV NOTED ON PLAN 3) ALL BOLTS 34/ A325 U/NOTED 4) SEE JOIST DWG'S FOR JOIST DETAILS C 33 H SS6X6X1 4/ C 32 H SS5X5X3 16 / HSS4X4X316/ POSTS FOR CANOPY ABOVE (SEE DWG E9) 12'-012/ 36'-6 36'-6 12'-712/ 5'-9 5'-1 1'-0 19'-3 5'-7 24'-8 8'-010'-0 24'-1 4'-9 25'-3 23'-0 DET. RTU-3 E11 F33 C4X4.5 ( RTU-3 ) F30 C4X4.5 ( RTU-9 ) F31 C4X4.5 ( RTU-9 ) ELEVATOR FRAME F8 SEE DWG E10 C 13 H SS6X6X1 4/ C 11 H SS5X5X3 8/ C 10 H SS5X5X3 16 / H SS5X5X3 8/ (F7 ) B106W14X22 C 14 H SS4X4X1 4/ C 23 H SS4X4X1 4/ B106W14X22 C 58 H SS4X4X1 4/ 3'-4 5'-9 24'-8 25'-3 SLOPEDOWN 817'-11 8'-010'-0 C 3 H SS6X6X1 4/ C 4 H SS6X6X1 4/ B16W8X18 B34 W16X26 (-338/ ) B40 W14X22 (-338/ ) 16"_OWSJ 1'-114/ 5'-9 M3 LADDER SEE DWG E14 C 5 H SS6X6X1 4/ B20W8X18 B36 W16X26 (-338/ ) 16"_OWSJ B26 W14X22 1'-614/ 1'-614/ 5'-05'-0 SLOPEDOWN SLOPE DOWNSLOPE DOWN ROOF lLOW POINT -1 14/ U/S DECK EL= 127'-0 14/ DET. RTU-10 E11 F29 C4X4.5 ( RTU-10 ) F32 C4X4.5 ( RTU-10 ) TJ TJ TJ B E2 16"_OWSJ C 8 H SS6X6X1 4/ C 7 H SS5X5X3 16 / M2 LOOSE DECK L4X4X14/ FIELD CUT & WELD TO SUIT 16"_OWSJ 16"_OWSJ 16"_OWSJ B52 W14X22 (-338/ ) B34 W16X26 (-338/ ) 16"_OWSJ 16"_OWSJ 12'-712/ 5'-9 DET. RTU-2 E11 DET. RTU-9 E11 F28 C4X4.5 ( RTU-2 ) TJ ROOF lLOW POINT -3 U/S DECK EL= 126'-10 12/ C 9 H SS6X6X1 4/ 16"_OWSJ 16"_OWSJ 16"_OWSJ B49 W16X26 (-338/ ) 16"_OWSJ 16"_OWSJ 16"_OWSJ 3'-012/ 5'-9 5'-9 1'-614/ 1'-614/ SLOPEDOWN SLOPE DOWN 3'-4 3'-012/ 5'-9 5'-9 SLOPE DOWN 21'-2 23'-0 CANOPY ABOVE SEE DWG E9 5'-8 7 CANOPY BELOW SEE DWG E8 B24W14X22 HSS4X4X316/ POSTS FOR CANOPY ABOVE (SEE DWG E9) B27W14X22 B30 W14X22 B25 W14X22 5'-0 5'-0 5'-0 1'-10 3'-8 F5 C O L BEN T H SS5X5X3 8/ H SS5X5X3 8/ (F5 ) B43W14X22 B35W14X22 B35W14X22 W14X22 B54W14X22 B53W14X22 B44W14X22 B48 W14X22 3'-03'-012/ 1'-614/ 1'-614/ 12'-012/ 7'-0 6'-8 SLOPEDOWN DET. RTU-13 E11 DET. RTU-4 E11 F38 C4X4.5 ( RTU-13 ) F36 C4X4.5 ( RTU-13 ) SEE DWG E2 FOR TYP SECTIONS & DETAILS ROOF lLOW POINT -3 U/S DECK EL= 126'-10 12/ M7 LADDER SEE DWG E14 ROOF FRAMING PLAN C 19 H SS5X5X3 8/ C 20 H SS5X5X3 8/ B88 W16X26 B118 W8X18B103 W8X18 A E2 A E2 B60W8X18 ROOF HATCH TJ C 12 H SS6X6X3 8/ B86W8X10 B63W16X26 B93 W14X22 (-338/ ) B86W8X10 SLOPEDOWN SLOPE DOWN ROOF lLOW POINT - 78/ U/S DECK EL= 127'-0 58/ TJ C 21 H SS6X6X3 8/ B93 W14X22 (-338/ ) B179W16X26 B114W8X10 6'-02'-2 6'-8 SLOPE DOWN DET. RTU-11 E11 F34 C4X4.5 ( RTU-11 ) TJ TJ ROOF lLOW POINT -3 U/S DECK EL= 126'-10 12/ C 22 H SS6X6X1 4/ 16"_OWSJ 16"_OWSJ B82 W8X10 B95 W16X26 (-338/ ) B121 W16X26 (-338/ ) 16"_OWSJ 16"_OWSJ 16"_OWSJ F8 H SS5X5X3 16 / W8X10 W8X18 W8X18 W8X18 W8X18 6'-8 6'-8 3'-6 3'-4 6'-8 F35 C4X4.5 ( RTU-4 ) SLOPEDOWN 72'-0 SLOPEDOWN SLOPE DOWNSLOPE DOWN B130W8X10 ROOF lLOW POINT - 34/ U/S DECK EL= 127'-0 34/ TJ C E2 A E2 C 27 H SS6X6X1 4/ C 31 H SS5X5X3 16 / C 26 H SS5X5X3 16 / C 25 H SS5X5X3 16 / B133 W8X18 B136 W16X26 (-338/ ) B126W8X10 B130W8X10 B181W8X10 B125 W8X18 B180W8X10 B143W8X18 7'-0 5'-9 DET. RTU-12 E11 F39 C4X4.5 ( RTU-12 ) DET. RTU-5 E11 F40 C4X4.5 ( RTU-5 ) TJ C 28 H SS6X6X1 4/ B134 W16X26 (-338/ ) 16"_OWSJ 16"_OWSJ 16"_OWSJ 16"_OWSJ 16"_OWSJ B145W8X18 B140 W14X22 6'-8 5'-9 SLOPEDOWNSLOPEDOWN 3'-4 SLOPEDOWN F37 C4X4.5 ( RTU-12 ) 3'-4 5'-9 5'-9 ROOF lLOW POINT -3 U/S DECK EL= 126'-10 12/ 18'-2 LOOSE DECK L LIN LENGTH= 28'-2 18/ 20'-0 M2 LOOSE DECK L4X4X14/ FIELD CUT & WELD TO SUIT B131W14X22 B131W14X22 B138 W14X22 16"_OWSJ W14X22 B147W14X22 B141 W14X22 1'-11 6'-5 3'-6 3'-105'-4 4'-2 11'-10 10'-1 1'-2 20'-0 F7 C O L BEN T H SS5X5X3 8/ F9 C O L BEN T H SS5X5X3 8/ H SS5X5X3 8/ (F9 ) C 24 H SS5X5X3 16 / B66W14X22 B85W14X22 B57 W8X10 B72 W8X10 B123 W14X22 (-338/ ) 16"_OWSJ 16"_OWSJ B100 W14X22 (-338/ ) B89 W8X10 B77 W14X22 1'-1 5'-1 5'-0 5'-0 5'-0 3'-8 21'-2 3'-107 1'-10 23'-0 CANOPY ABOVE SEE DWG E9 C E2 C 30 H SS5X5X3 8/ C 29 H SS5X5X3 16 / F11 C O L BEN T H SS5X5X3 8/ H SS5X5X3 8/ (F11 ) B139W14X22 FIELD NOTE: THIS CONN ON WEST SIDE CANOPY BELOW SEE DWG E8 1012/ 3 2'-6 7 1012/ EL. +128'-0 HSS4X4X316/ SHOP WELDED TO BEAM DECK L4X4X14/ SHOP WELDED TO BEAM SEE PLAN FOR SIZE & MARK SEE PLAN FOR SIZE & MARK CANOPY FRAMING SEE DWG Exx
  • 19.
    CUSTOMER: DRAWN BY: DATE:(D/M/Y) PROJECT: DWG# CANBIAN BW 25/10/13 ROYAL NORTH CENTER E5 CHECKED BY:DATE: (D/M/Y) 11/04/13IC3D REV# 0HOLES: 13/16" Ø U.N.O. PAINT: SSPC-SP3,SHOP GREY PRIMER JOB# 1112 ALL STEEL CRAFT PHONE: (780) 478-6668 FAX: (780) 478-6677 FABRICATORS LTD. 0 ISSUED FOR CONSTRUCTION 25/11/13 A ISSUED FOR APPROVAL 31/10/13 REV DESCRIPTION DATE BY 1 B B A A ED C C F E E 1 D 3 4 D 1 127'-1"1/2 A - A 1 127'-1"1/2 B - B 1 127'-1"1/2 C - C 113'-8 D - D 113'-8 C - C 113'-8 1 E - E SEE DWG E2 FOR TYP SECTIONS & DETAILS CUST REF DWG: S9 & S4 R0 6'-5 20'-0 B109 W8X18 TOS EL= 131'-8 B55W8X18 B74W8X10 H SS4X4X1 4/ C 14 B91W8X10 B101W8X10 B101W8X10 B101W8X10 H SS4X4X1 4/ C 23 B78 W8X18 TOS EL= 131'-1012/ H SS5X5X3 8/ (C 30 ) B101W8X10 H SS4X4X1 4/ C 58 3'-8 2'-9 6'-5 1'-11 20'-0 9'-2 5'-04'-2 SLOPEDOWN F20 SEE DWG E9 NOTES: 1) TOS ELEV= 131'-1012/ @ HIGH POINT 2) ALL BOLTS 34/ A325 U/NOTED HIGH ROOF FRAMING PLAN A E2 A E2 H SS5X5X3 8/ (F9 ) H SS5X5X3 8/ (F7 ) B113 W14X22 TOS EL= 131'-1012/ 5'-11 5'-11 6'-5 6'-5 2'-0 B128W8X18 F21 SEE DWG E9 FIELD NOTE: THIS CONN ON WEST SIDE A E2 74'-2 4'-9 A E2 A E2 A E2 F7 C O L BEN T H SS5X5X3 8/ F9 C O L BEN T H SS5X5X3 8/ H SS5X5X3 8/ (F9 ) H SS5X5X3 8/ (F7 ) B81 W8X10 C 15 H SS3X3X3 8/ B75 W8X10 B67 W8X10 B80W8X10 1'-27 11'-10 4'-1112/ 9'-11 1'-93'-7 5'-31516/ SEE E12 FOR STAIR & H/RAIL SS1000 C10X15.3 NOTES: 1) TOS ELEV ELEV= 106'-8 2) ALL BOLTS 34/ A325 U/NOTED NORTH STAIR LANDING PLAN 5'-0 7 710'-0 SEE E13 FOR STAIR & H/RAIL NOTES: 1) TOS ELEV ELEV= 106'-8 2) ALL BOLTS 34/ A325 U/NOTED SOUTH STAIR LANDING PLAN VERT BRACING SEE DWG E7 VERT BRACING SEE DWG eXX A E2 A E2 A E2 C C D D C 16 H AN G ER H SS3X3X3 8/ H SS6X6X3 8/ C 12 H SS5X5X3 8/ C 11 B73W8X10 B61W8X10 B69 W8X10 C 17 H AN G ER H SS3X3X3 8/ B68 W8X10 B70 W8X10 C 18 H AN G ER H SS3X3X3 8/ 10'-0 3'-11 5'-0 4'-2 B66 W14X22 C14HSS4X4X14/ 4'-612/ 4'-9 B55 W8X18 3'-10 1'-2 5'-0 4'-7 +131'-8 B175 W8X18 +127'-1 HSS5X5X316/ C24 B109 W8X18 C23HSS4X4X14/ B106 W14X22 SLOPING) 7 5'-0 4'-2 3'-10 1'-2 +131'-1012/ +131'-8 B128 W8X18 (SLOPING) F21 C58HSS4X4X14/ +127'-1 B106 W14X22 (SLOPING) C29 4'-7 3'-1 1012/ 4'-9 +128'-0 C30 F11 6'-858/338/ B70 W8X10 +106'-8 C18HSS3X3X38/ B92 W18X40 7'-0 +106'-8 C16 HSS3X3X38/ C17 HSS3X3X38/ B69 W8X10 V11 HSS4X4X14/ B87 W16X26 7 7'-0 +106'-8 B67 W8X10 C15HSS3X3X38/ B65 W8X18
  • 20.
    CUSTOMER: DRAWN BY: DATE:(D/M/Y) PROJECT: DWG# CANBIAN BW 25/10/13 ROYAL NORTH CENTER E7 CHECKED BY:DATE: (D/M/Y) IC3D REV# 0HOLES: 13/16" Ø U.N.O. PAINT: SSPC-SP3,SHOP GREY PRIMER JOB# 1112 ALL STEEL CRAFT PHONE: (780) 478-6668 FAX: (780) 478-6677 FABRICATORS LTD. 0 ISSUED FOR CONSTRUCTION 25/11/13 A ISSUED FOR APPROVAL 31/10/13 REV DESCRIPTION DATE BY 127'-1"1/2 113'-8 100'-0 ED DET. A DET. B 127'-1"1/2 113'-8 100'-0 4 3 100'-0 127'-1"1/2 113'-8 4 3 100'-0 D DETAIL A 100'-0 DETAIL B 7'-0 14'-7 13'-8 FIELD NOTE: BRACE CONN PL ON NS (TYP) CROSS BRACING @ LINE 4 C17 HSS3X3X38/ C16 HSS3X3X38/ B102 W8X18 V9 HSS4X4X 1 4/ B103 W8X18 6'-8 +106'-8 GRADE BEAM V8 HSS4X4X 1 4/ 5 3'-11 B69 W8X10 13'-512/ B88 W16X26 V9 HSS4X4X 1 4/ 5 HSS5X5X38/ C20 V12 HSS4X4X 1 4/ V13 HSS4X4X14/ V11 HSS4X4X 1 4/ 5'-5 V10 HSS4X4X 1 4/ HSS5X5X38/ C19 B116 W16X26 B117 HSS7X5X38/ F10 HSS7X5X38/ HSS5X5X316/ B118 W8X18 B97 W8X18 10'-0 10'-0 13'-813'-512/ FIELD NOTE: BRACE CONN PL ON NS (TYP) CROSS BRACING @ LINE E B105 W16X26 V14HSS4X4X 14/ V4HSS4X4X 14/ B179 W16X26 GRADE BEAM V15 HSS4X4X1 4/ V5 HSS4X4X1 4/ 5 V13 HSS4X4X1 4/ 7 V3 HSS4X4X1 4/ HSS6X6X38/ C21 5 7 Z469 PL7 14/ "X157 12/ 10'-0 7 7 10'-0 13'-512/ CROSS BRACING @ LINE D B62 W16X26 B63 W16X26 V1 HSS4X4X1 4/ V5 HSS4X4X1 4/ 6'-87'-0 13'-8 +106'-8 V6 HSS4X4X1 4/ 5 V2HSS4X4X 14/ V4HSS4X4X 14/ V3 HSS4X4X1 4/ 7'-8 B61 W8X10 V7HSS4X4X 14/ 5 FIELD NOTE: BRACE CONN PL ON NS (TYP) HSS5X5X38/ C11 HSS4X4X14/ V8 HSS4X4X14/ V11 HSS5X5X38/ C19
  • 21.
    CUSTOMER: DRAWN BY: DATE:(D/M/Y) PROJECT: DWG# CANBIAN BW 29/10/13 ROYAL NORTH CENTER E8 CHECKED BY:DATE: (D/M/Y) IC3D REV# 0HOLES: 13/16" Ø U.N.O. PAINT: SSPC-SP3,SHOP GREY PRIMER JOB# 1112 ALL STEEL CRAFT PHONE: (780) 478-6668 FAX: (780) 478-6677 FABRICATORS LTD. 0 ISSUED FOR CONSTRUCTION 25/11/13 A ISSUED FOR APPROVAL 31/10/13 REV DESCRIPTION DATE BY A 1 B DET. B 1 DET. BDET. B DET. D DET. A G DET. A DET. C DET. BDET. BDET. B JH DET. D DET. A DET. B DET. B DET. B DET. ADET. C 2 3 K DETAIL A SEE PLAN FOR ORIENTATION DETAIL B SEE PLAN FOR ORIENTATION DETAIL C SEE PLAN FOR ORIENTATION DETAIL D SEE PLAN FOR ORIENTATION B1 - B1 D1 - D1 A1 - A1 DETAIL E SEE PLAN FOR ORIENTATION E2 - E2 E1 - E1 E2 E2 DETAIL F SEE PLAN FOR ORIENTATION CUST REF DWG: S6 R0 SEE DWG E9 FOR HIGH ROOF CANOPIES 5'-6 3'-1 5'-8 5'-8 5'-8 5'-8 5'-1 57'-11 5'-12'-10 6 9'-2 1'-45'-02'-10 30'-10 2'-6 23'-3 5'-1 PL38/ "X3 CANOPY POST BASE PL @ EL. 118'-412/ SEE PLAN ON E3 DET. ADET. BDET. B NOTES: 1) ALL HSS4X4X316/ U/NOTED 2) ALL BOLTS 34/ A325 NORTH-WEST CANOPY FRAMING @ ELEV. 124'-0 DET. D DET. C DET. B DET. A H SS5X5X3 8/ (F4 ) H SS4X4X3 16 / (BELO W )F4 H SS4X4X3 16 / (BELO W )B10 H SS4X4X3 16 / (BELO W )B10 H SS4X4X3 16 / (BELO W )B10 H SS4X4X3 16 / (BELO W )F3 H SS4X4X3 16 / (BELO W )F4 H SS4X4X3 16 / (BELO W )B3 F17 HSS4X4X316/ 7 1'-0 5'-9 56'-2 23'-0 DET. E NOTES: 1) ALL HSS4X4X316/ U/NOTED 2) ALL BOLTS 34/ A325 NORTH-EAST CANOPY FRAMING @ ELEV. 124'-0 CANOPY POST BASE PL @ EL. 118'-412/ SEE PLAN ON E3 H SS4X4X3 16 / (BELO W )F14 1'-0 55'-11 3'-12'-10 3'-6 5'-1 5'-9 5'-9 5'-9 H SS5X5X3 8/ (F13 ) F23 HSS4X4X316/ H SS4X4X3 16 / (BELO W )F13 H SS4X4X3 16 / (BELO W )F13 H SS4X4X3 16 / (BELO W )B152 H SS4X4X3 16 / (BELO W )B152 H SS4X4X3 16 / (BELO W )B152 2'-512/ 2'-1012/5'-1112/2'-10 5'-9 5'-9 5'-9 5'-9 5'-1 23'-0 DET. F F25HSS4X4X316/ F24 HSS4X4X316/ H SS4X4X3 16 / (BELO W )B164 H SS4X4X3 16 / (BELO W )B161 H SS4X4X3 16 / (BELO W )B161 H SS4X4X3 16 / (BELO W )B161 H SS4X4X3 16 / (BELO W )C 38 24'-81'-512/ 26'-112/ 6'-1 8'-7 5'-6 3'-1 2'-7 7 4'-10 3'-1 7'-11 2'-96'-66'-76'-76'-512/3'-1 31'-1112/ F26HSS4X4X316/ NOTES: 1) ALL HSS4X4X316/ U/NOTED 2) ALL BOLTS 34/ A325 SOUTH-EAST CANOPY FRAMING @ ELEV. 124'-0 CANOPY POST BASE PL @ EL. 118'-412/ SEE PLAN ON E3 3'-2 2'-27 H SS4X4X3 16 / (BELO W )F16 H SS4X4X3 16 / (BELO W )C 39 H SS4X4X3 16 / (BELO W )F16 H SS4X4X3 16 / (BELO W )B174 H SS4X4X3 16 / (BELO W )B174 H SS4X4X3 16 / (BELO W )C 41 H SS4X4X3 16 / (BELO W )B166 55 A1 A1 PL38/ "X3 L4X4X38/ L4X4X38/ H SS4X4X3 16 / (BELO W ) 112/434/ B1 B1 PL38/ "X4 PL38/ "X3 H SS4X4X3 16 / (BELO W ) L4X4X38/ 434/ 112/ PL38/ "X3 B1B1 L4X4X38/ H SS4X4X3 16 / (BELO W ) 112/112/ L4X4X38/ PL38/ "X3 D1 D1 212/ U/SIDE ELEV. +124'-0 BOLT 34/ "DIA A325 6 PL38/ "X3 PL38/ "X4 L4X4X38/ HSS4X4X316/ FRAME (SEE PLAN) 212/ HSS4X4X316/ (SEE PLAN) U/SIDE ELEV. +124'-0 BOLT 34/ "DIA A325 6 PL38/ "X3 L4X4X38/ FRAME (SEE PLAN) 212/ U/SIDE ELEV. +124'-0 PL38/ "X3 L4X4X38/L4X4X38/ FRAME (SEE PLAN) HSS4X4X316/ (SEE PLAN) 1'-01'-0 116/FRAME END END FRAME 3 x BOLT 34/ "DIA A325 512/ H SS4X4X3 16 / (BELO W ) E1 E1 E2 E2 L4X3X14/ 2 116/FRAME END END FRAME 116/FRAME END END FRAME 2'-0 MAX 2'-0 MAX 116/FRAME ENDEND FRAME 3 x BOLT 34/ "DIA A325 512/ L4X3X14/
  • 22.
    CUSTOMER: DRAWN BY: DATE:(D/M/Y) PROJECT: DWG# CANBIAN BW 30/10/13 ROYAL NORTH CENTER E10 CHECKED BY:DATE: (D/M/Y) IC3D REV# 0HOLES: 13/16" Ø U.N.O. PAINT: SSPC-SP3,SHOP GREY PRIMER JOB# 1112 ALL STEEL CRAFT PHONE: (780) 478-6668 FAX: (780) 478-6677 FABRICATORS LTD. 0 ISSUED FOR CONSTRUCTION 25/11/13 A ISSUED FOR APPROVAL 31/10/13 REV DESCRIPTION DATE BY ELEVATOR FRAME ISOMETRIC (LOOKING SOUTH-EAST) ELEVATOR FRAME ISOMETRIC (LOOKING NORTH-EAST) 127'-1"1/2 113'-8 100'-0 2 EAST ELEVATION (LOOKING WEST) DET. A 127'-1"1/2 113'-8 100'-0 2 WEST ELEVATION (LOOKING WEST) DET. B 127'-1"1/2 113'-8 100'-0 D NORTH ELEVATION (LOOKING NORTH) 127'-1"1/2 113'-8 100'-0 D SOUTH ELEVATION (LOOKING NORTH) 113'-8 2 DETAIL A / E10 113'-8 2 DETAIL B / E10 HSS5X5X38/ TYP U/NOTED TOS EL. 127'-078/ EAST W8X18 W8X18 W8X18 F8HSS5X5X316/ HSS5X5X316/ W8X18 W8X18 W8X18 SOUTH HSS5X5X316/ HSS5X5X316/ TOS EL. 127'-0916/ TOS EL. 127'-112/ TOS EL. 127'-112/ W8X18 W8X18 W8X10 TOS EL. 127'-112/ M6 LADDER SEE DWG E14 WESTNORTH HSS5X5X316/ HSS5X5X316/ HSS5X5X316/ F8HSS5X5X316/ F34 C4X4.5 ( RTU-14 ) SEE DWG E11 TOS EL. 127'-078/ TOS EL. 127'-112/ TOS EL. 127'-0916/ W8X18 W8X18 W8X18 W8X18 W8X10 W8X18 W8X18 W8X18 W8X18 5'-3 9'-0 5'-3 8'-10 13'-512/ F34 C4X4.5 DET. A W8X18 EL.+127'-01116/ B83 W8X10 B94 W18X40B84 W8X10 3'-4 434/ 6 8'-65'-2 13'-8 2- 12/ x5 WEDGE BOLTS POWER FASTERNERS OR EQUIV. 3 GA 312/ EMBEDMENT 58/ W8X18 EL.+127'-078/ B85 W14X22 5 338/ 5 338/ 1'-134/ (SIM.) B82 W8X10 B95 W16X26 6 6'-1112/ DET. B 6'-812/6'-4716/7'-1116/ W8X18 W8X18 B65 W8X18 B66 W14X22 HSS6X6X14/C13 (SIM.) B33 W18X40 B49 W16X26 6 58/ EL.+127'-078/ F8HSS5X5X316/ W8X18 W8X18 6'-4716/ 78/ W8X18 EL.+127'-058/ 6'-812/6'-1112/ 6 7'-1116/ 6'-5 W8X18 1'-134/ 212/ 834/ 338/ 3212/ HSS5X5X316/ W18X40 B94 W8X10 B83 3212/ 212/ 534/ 1'-134/ W8X10 STUB HSS6X6X14/ C13
  • 23.
    CUSTOMER: DRAWN BY: DATE:(D/M/Y) PROJECT: DWG# CANBIAN BW 25/11/13 ROYAL NORTH CENTER E11 CHECKED BY:DATE: (D/M/Y) IC3D REV# 0HOLES: 13/16" Ø U.N.O. PAINT: SSPC-SP3,SHOP GREY PRIMER JOB# 1112 ALL STEEL CRAFT PHONE: (780) 478-6668 FAX: (780) 478-6677 FABRICATORS LTD. 0 ISSUED FOR CONSTRUCTION 29/11/13 ISSU A ISSUED FOR APPROVAL 25/11/13 BW REV DESCRIPTION DATE BY 5'-612/ 63'-4 3'-012/ 5'-11 DET. C DET. A (TYP U/N) F43 C4X4.5 ( RTU-8 ) 18"_OWSJ 18"_OWSJ 18"_OWSJ 18"_OWSJ B167 W16X36 F46 C4X4.5 ( RTU-8 ) DETAIL RTU-8 (DWG. E3 ) 3'-012/ 3'-42'-212/ 6'-2 DET. A (TYP U/N) 16"_OWSJ 16"_OWSJ F27C4X4.5 (RTU-1) DETAIL RTU-1 E3 5'-612/ 63'-4 3'-012/ 4'-6 DET. C DET. B DET. BDET. B DET. A (TYP U/N) F41 C4X4.5 ( RTU-6 ) B150W14X22 B155W14X22 18"_OWSJ B154 W18X40 18"_OWSJ F44 C4X4.5 ( RTU-6 ) DETAIL RTU-6 (DWG. E3 ) 5'-612/ 63'-4 3'-012/ 5'-9 DET. A (TYP U/N) DET. C DET. B DET. B DET. B B159 W16X36 18"_OWSJ 18"_OWSJ B157W14X22 B157W14X22 F42 C4X4.5 ( RTU-7 ) F45 C4X4.5 ( RTU-7 ) DETAIL RTU-7 (DWG. E3 ) 5'-612/3'-012/ 6'-8 5'-9 3'-4 DET. A (TYP U/N) DET. E DET. E F36 C4X4.5 ( RTU-13 ) F38 C4X4.5 ( RTU-13 ) DETAIL RTU-13 (DWG. E4 ) 5'-612/ 3'-012/ 3'-4 6'-8 5'-9 DET. B DET. B DET. D DET. DDET. A (TYP U/N) F39 C4X4.5 ( RTU-12 ) F37 C4X4.5 ( RTU-12 ) 16"_OWSJ B106W14X22 B131W14X22 DETAIL RTU-12 (DWG. E4 ) 5'-612/ 2'-212/3'-4 3'-012/ 6'-8 DET. A (TYP U/N) 16"_OWSJ 16"_OWSJ F35 C4X4.5 ( RTU-4 ) DETAIL RTU-4 (DWG. E4 ) 5'-612/ 2'-212/3'-4 3'-012/ 5'-9 DET. A (TYP U/N) F40 C4X4.5 ( RTU-5 ) 16"_OWSJ16"_OWSJ DETAIL RTU-5 (DWG. E4 ) 3'-6 6'-11 2'-2 DET. A (TYP U/N) DET. B DET. B F8W8X18 16"_OWSJ F34 C4X4.5 ( RTU-11 ) DETAIL RTU-11 (DWG. E4 ) 3'-012/ 5'-612/ 3'-4 5'-9 5'-9 DET. E DET. E DET. A (TYP U/N) 16"_OWSJ F32 C4X4.5 ( RTU-10 ) F29 C4X4.5 ( RTU-10 ) 16"_OWSJ 16"_OWSJ DETAIL RTU-10 (DWG. E4 ) 5'-612/ 3'-42'-212/ 3'-012/ 5'-9 DET. A (TYP U/N) 16"_OWSJ 16"_OWSJ F33 C4X4.5 ( RTU-3 ) DETAIL RTU-3 (DWG. E4 ) 3'-012/ 5'-612/ 3'-4 5'-9 5'-9 DET. D DET. DDET. B (TYP U/N) B44W14X22 F31 C4X4.5 ( RTU-9 ) F30 C4X4.5 ( RTU-9 ) B35W14X22 B43W14X22 DETAIL RTU-9 (DWG. E4 ) 3'-012/ 5'-612/ 3'-42'-212/ 5'-9 F28 C4X4.5 ( RTU-2 ) DET. A (TYP U/N) 16"_OWSJ 16"_OWSJ DETAIL RTU-2 (DWG. E4 ) 6 14/ 14/ TYP C4X4.5 SEE PLAN C4X4.5 SEE PLAN 2- L2-12/ X2-12/ X516/ 2- L2-12/ X2-12/ X516/ SEE PLAN DETAIL C 21116/ 4516/ 614/ 1316/ C4X4.5 RTU FRAME SEE PLAN FOR MARKS JOIST TOP CHORD (BY OTHERS) 14/ L7X4X38/ x 5 DETAIL A 312/ C4X4.5 SEE PLAN SEE PLAN L5X5X38/ x 5 14/ DETAIL B 312/ 312/ 14/ C4X4.5 SEE PLAN C4X4.5 SEE PLAN L5X3X38/L5X3X38/ SEE PLAN DETAIL D 4 4 318/ 318/ 516/ 60° PP 14/ 14/ 14/ 14/ L6X4X38/ L6X4X38/ C4X4.5 SEE PLANC4X4.5 SEE PLAN JOIST TOP CHORD (BY OTHERS) DETAIL E
  • 24.
    CUSTOMER: DRAWN BY: DATE:(D/M/Y) PROJECT: DWG# CANBIAN BW 25/11/13 ROYAL NORTH CENTER E14 CHECKED BY:DATE: (D/M/Y) IC3D REV# 0HOLES: 13/16" Ø U.N.O. PAINT: SSPC-SP3,SHOP GREY PRIMER JOB# 1112 ALL STEEL CRAFT PHONE: (780) 478-6668 FAX: (780) 478-6677 FABRICATORS LTD. 0 ISSUED FOR CONSTRUCTION 29/11/13 ISSU A ISSUED FOR APPROVAL 25/11/13 BW REV DESCRIPTION DATE BY A A A - A B - B C - C 5'-6 M6 ACCESS LADDER FRAME F8 1'-6 +/- FIELD LOCATE 9@1'-06 9'-6 ELEVATOR PIT ACCESS LADDER CC BB LAG SCREW W/1/2 DIA SCREWS INTO WOOD BLOCKING (BY OTHERS) 12/ X312/ WEDGE BOLT (4 REQ'D IN CONC) 812/ JANITOR ROOM @ LINE 3 (LOOKING SOUTH) FIN 2ND FLOOR ROOF HATCH ACCESS LADDER BB M7 ACCESS LADDER T.O. LADDER T.O. RUNG +128'-812/ +127'-112/ 16"_OWSJ +128'-0 +114'-0 1'-212/4'-04'-02'-32'-6 1'-5 (EST.T.O.PARAPET) 6516/CLEAR 2'-91316/ +/- (EST.) 5'-3 8'-5 14@1'-0 1'-712/10@1'-0 1'-112/ ONE CAGED LADDER @ GRID G/2 ONE CAGED LADDER @ GRID B/2 SLOPED ROOF INSULATION M3 CAGED LADDER ROD34/ T.O. RUNG +130'-0 514/ 2'-0 514/ 1'-0 1'-412/ 2'-03'-13'-12'-01112/ 1'-0 1'-0 10 10 712/10'-64'-0 SIM. (LOOKING EAST) AS SHOWN (LOOKING WEST) U/SIDE DECK T.O. PARAPET +118'-412/ +133'-6 +119'-0 +129'-6 M4 L8X4X12/ 2 1'-114/ 2'-714/ 1'-1112/ 42'-012/ 612/1'-01'-0 714/ 9 714/ 6 3 10'-6638/ 8'-612/5'-1112/ M5 L8X4X12/ FIELD NOTE: M9 & M10 FOR LADDER @ LINE G ADD CONN'S TO STUD WALL/PARAPET AS REQ'D (BY OTHERS) Z BAR CONNECTORS BY OTHERS 14/ 3 SIDES CHK`D PL38/ "X22 14/ 612/ 2'-012/ 134/134/ 1'-9 BENT PL38/ X4 LAG SCREW W/1/2 DIA SCREWS INTO WOOD BLOCKING (BY OTHERS) (LADDER LOCATION) 612/ 1'-6 M6
  • 25.
    CUSTOMER: DRAWN BY: DATE:(D/M/Y) PROJECT: DWG# CANBIAN BW 18/10/13 ROYAL NORTH CENTER E2 CHECKED BY:DATE: (D/M/Y) IC3D REV# 0HOLES: 13/16" Ø U.N.O. PAINT: SSPC-SP3,SHOP GREY PRIMER JOB# 1112 ALL STEEL CRAFT PHONE: (780) 478-6668 FAX: (780) 478-6677 FABRICATORS LTD. 0 ISSUED FOR CONSTRUCTION 25/11/13 A ISSUED FOR APPROVAL 31/10/13 REV DESCRIPTION DATE BY 1 2 3 4 6 DCB 5 GFE SECT. A / E2 SECT. B / E2 DETAIL A SECT. C / E2 DETAIL B B1 - B1 SECT. C / E2 TYP SHEAR PL CONN ORIENTATION TYP BEAM TO COL CONNTYPICAL DECK ANGLE SPLKICE DETAILS CUST REF DWG: S4 R0 7 2'-78'-024'-824'-84'-1 7 7 A C 2 H SS5X5X3 16 / C 6 H SS5X5X3 16 / C 33 H SS6X6X1 4/ C 32 H SS5X5X3 16 / H SS5X5X3 8/ (F13 ) F13 C O L BEN T H SS5X5X3 8/ NOTES: 1) TOP OF STEEL ELEV= 113'-8 U/ NOTED (-338/ ) FOR JOIST SHOE DEPTH 2) ALL BOLTS 34/ A325 U/NOTED 3) SEE JOIST DWG'S FOR JOIST DETAILS 2ND FLOOR PLAN 3'-10 LOOSE DECK L LIN LENGTH= 45'-6 12/ LOOSE DECK L LIN LENGTH= 18'-10 15'-214'-3 10'-134/5'-014/ 19'-6 8'-010'-0 4'-9 25'-3 24'-8 3'-212/ 3'-212/ 3'-6116/ 23'-0 R1004 PIPE1-14/ STD SS1000 C10X15.3 A A C 13 H SS6X6X1 4/ C 11 H SS5X5X3 8/ C 10 H SS5X5X3 16 / 18"_OWSJ F8 H SS5X5X3 16 / H SS5X5X3 8/ (F7 ) 18"_OWSJ B98 W8X18 18"_OWSJ 18"_OWSJ 3'-10 25'-3 7'-0 24'-8 7'-08'-010'-0 718'-0 C 3 H SS6X6X1 4/ C 4 H SS6X6X1 4/ B13W8X18 B37 W16X26 B33 W18X40 (-338/ ) 14"_OWSJ 14"_OWSJ 3'-10 3'-10 A C 5 H SS6X6X1 4/ B17W8X18 B33 W18X40 (-338/ ) 18"_OWSJ 18"_OWSJ 7 B TJ TJ TJ C 8 H SS6X6X1 4/ C 7 H SS5X5X3 16 / M2 LOOSE DECK L4X4X14/ FIELD CUT & WELD TO SUIT 14"_OWSJ 14"_OWSJ 14"_OWSJ 14"_OWSJ 14"_OWSJ B50 W16X26 B33 W18X40 (-338/ ) M2 LOOSE DECK L4X4X14/ FIELD CUT & WELD TO SUIT 14"_OWSJ 14"_OWSJ 14"_OWSJ 14"_OWSJ 3'-10 3'-10 3'-10 3'-10 3'-10 3'-10 3'-10 3'-10 TJ TJ C 9 H SS6X6X1 4/ 18"_OWSJ 18"_OWSJ 18"_OWSJ 18"_OWSJ 18"_OWSJ B33 W18X40 (-338/ ) 18"_OWSJ 18"_OWSJ 18"_OWSJ 18"_OWSJ LOOSE DECK L LIN LENGTH= 20'-9 21'-2 23'-0 H SS5X5X3 8/ (F4 ) F5 C O L BEN T H SS5X5X3 8/ H SS5X5X3 8/ (F5 ) B21W8X18 B29 W16X26 (-338/ ) M2 LOOSE DECK L4X4X14/ FIELD CUT & WELD TO SUIT 18"_OWSJ 18"_OWSJ 18"_OWSJ 18"_OWSJ 18"_OWSJ 18"_OWSJ W14X22 (-338/ ) M1 DECK L4X4X14/F4 C O L BEN T H SS5X5X3 8/ B46 W16X26 (-338/ ) M2 LOOSE DECK L4X4X14/ FIELD CUT & WELD TO SUIT 18"_OWSJ 18"_OWSJ 18"_OWSJ 18"_OWSJ 5'-6 7 B9 HSS7X5X38/ TOS EL= 111'-812/ SEE DWG E6 1'-10 3'-5 DET. A B LOOSE DECK L LIN LENGTH= 14'-4 4'-0 4'-0 3'-11 14'-7 M7 LADDER SEE DWG E14 M2 LOOSE DECK L4X4X14/ FIELD CUT & WELD TO SUIT C 16 H AN G ER H SS3X3X3 8/ C 19 H SS5X5X3 8/ B87 W16X26 B116 W16X26B102 W8X18 SEE DWG E13 FPR STAIRS & HANDRAIL A B58W8X18 A B TJ C 12 H SS6X6X3 8/ B62W16X26 C 18 H AN G ER H SS3X3X3 8/ B92 W18X40 (-338/ ) 2'-812/ 2'-812/ 4'-0 4'-0 5'-5 A C 20 H SS5X5X3 8/ C TJ C 21 H SS6X6X3 8/ B119 W18X40 (-338/ ) B97W8X18 B104W8X10 B105W16X26 B111W8X10 B111W8X10 4'-0 3'-4 15'-6 ELEVATOR FRAME F8 SEE DWG E10 TJ TJ C 22 H SS6X6X1 4/ 18"_OWSJ 18"_OWSJ B83 W8X10 B120 W18X40 (-338/ ) B94 W18X40 (-338/ ) 18"_OWSJ 18"_OWSJ 18"_OWSJ 18"_OWSJ 18"_OWSJ 18"_OWSJ W8X18 W8X18 W8X18 W8X18 B84W8X10 B71W8X10 B79 W8X18 B96W12X19 B96W12X19 4'-0 4'-0 4'-0 3'-5 4'-0 4'-0 4'-0 3'-4 4'-0 4'-0 3'-10 3'-10 3'-10 3'-10 3'-10 3'-10 72'-0 A CTJ B111W8X10 C 27 H SS6X6X1 4/ C 31 H SS5X5X3 16 / C 26 H SS5X5X3 16 / C 25 H SS5X5X3 16 / B132 W16X26 B135 W18X40 (-338/ ) B126W8X10 B111W8X10 B129W8X10 B124 W8X18 B129W8X10 B129W8X10 B129W8X10 B129W8X10 B58W8X18 B21W8X18 4'-0 4'-0 3'-10 3'-10 3'-10 3'-10 3'-10 3'-10 TJ TJ 18"_OWSJ C 28 H SS6X6X1 4/ B33 W18X40 (-338/ ) 18"_OWSJ 18"_OWSJ 18"_OWSJ 18"_OWSJ 18"_OWSJ 18"_OWSJ 18"_OWSJ B21W8X18 LOOSE DECK L LIN LENGTH= 18'-2 20'-0 20'-0 B56 W8X18 B90W16X26 B107W16X26 B122 W16X26 (-338/ ) M2 LOOSE DECK L4X4X14/ FIELD CUT & WELD TO SUIT 18"_OWSJ 18"_OWSJ B76 W8X18 W14X22 W14X22 C 30 H SS5X5X3 8/ C 29 H SS5X5X3 16 / F11 C O L BEN T H SS5X5X3 8/ H SS5X5X3 8/ (F11 ) M2 LOOSE DECK L4X4X14/ FIELD CUT & WELD TO SUITB177 W16X26 (-338/ ) 18"_OWSJ 18"_OWSJ 18"_OWSJ 18"_OWSJ W14X22 (-338/ ) 18"_OWSJ W14X22 11'-10 10'-1 1'-11 9'-11 20'-0 C AA B99 HSS5X5X14/ F7 H SS5X5X3 8/ F9 H SS5X5X3 8/ H SS5X5X3 8/ (F9 )C 24 H SS5X5X3 16 / B65 W8X18 C 15 H AN G ER H SS3X3X3 8/ 1'-24'-2 LOOSE DECK L LIN LENGTH= 20'-9 1'-10 3'-8 21'-2 2'-0 21'-0 77 23'-0 B DET. B 3'-6 B151 HSS7X5X38/ 3 SEE PLAN FOR SIZE & MARK DECK L4X4X14/ SHOP WELDED TO BEAM 3 338/ SEE PLAN FOR SIZE & MARK OWSJ (BY OTHERS) M2 LOOSE DECK L4X4X14/ SEE PLAN FOR LIN LENGTH REQ'D FIELD CUT FROM STOCK LENGTHS AS REQ'D 3 M2 LOOSE DECK L4X4X14/ F5 W14X22 WT4X9 HSS BRACE M1 DECK L4X4X14/ CUT TO FIT AROUND HSS BRACE 338/ 10 SEE PLAN FOR SIZE & MARK OWSJ (BY OTHERS) M2 LOOSE DECK L4X4X14/ SEE PLAN FOR LIN LENGTH REQ'D FIELD CUT FROM STOCK LENGTHS AS REQ'D 7 212/ 212/ C 29 W14X22 ( F11 ) B1 B1 3 7 3 514/ C29 W14X22 ( F11 ) 338/ 14/ OWSJ (BY OTHERS) SEE PLAN FOR SIZE & MARK SEE PLAN FOR SIZE & MARK SHEAR PL ON EAST & SOUTH BEAM WEB FACE (TYP U/ NOTED) 212/ 5@3-34/A325NW18 4@3-34/A325NW16 3@3-34/A325NW12W14 2@3-34/A325NW8 14/ 14/ PL38/ "X4 14/JOISTDEPTH 112/ 3 38/ 2 116/ 338/ @ ROOF LEVELS 2 x BOLT 34/ "DIA A325 214/ 4" GA 2 x BOLT 34/ "DIA A325 214/ 4" GA TIE JOIST TYP DETAILTJ L4X4X14/ OWSJ (BY OTHERS) SEE PLAN FOR SIZE & MARK PL14/ "X6 L6X4X12/ X 7 L6X4X12/ X 7 338/ 116/ 14/JOISTDEPTH 38/ 2 @ INTERMEDIATE LEVELS TIE JOIST TYP DETAILTJ SEE PLAN FOR SIZE & MARK 2 x BOLT 34/ "DIA A325 214/ 4" GA 2 x BOLT 34/ "DIA A325 214/ 4" GA PL14/ "X6 L6X4X12/ X 7 L6X4X12/ X 7 OWSJ (BY OTHERS) DECK SUPPORT L3X3X38/ ON OPEN FACE OF COLUMN AS REQ'D (TYP) M2 LOOSE DECK L4X4X14/ FIELD CUT & WELD TO SUIT ALYERNATE SPLICE PREFERRED SPLICE CTR'D ON SUPPORT
  • 26.
    QTY. SITE BOLTSLENGTH 3/4"Ø A325N BOLT8 1 3/4" 3/4"Ø A325N BOLT10 2" 0 ISSUED TO SHOP 15/11/13 BW A ISSUED FOR APPROVAL 31/10/13 BW REV DESCRIPTION DATE BY ONE - BEAM - B46 CUSTOMER: DRAWN BY: DATE: (D/M/Y) PROJECT: DWG# CANBIAN 21/10/13 ROYAL NORTH CENTER B46 CHECKED BY:DATE: (D/M/Y) REV# 0HOLES: 13/16" Ø U.N.O. PAINT: SSPC-SP3,SHOP GREY PRIMER JOB# 1112 ALL STEEL CRAFT PHONE: (780) 478-6668 FAX: (780) 478-6677 FABRICATORS LTD. MARK QTY DESCRIPTION LENGTH WEIGHT REMARKS MATL ABM# B46 1 B46 1 W16X26 18'-8" 489 350W 0BEAM Z63 TOTAL WEIGHT THIS DRAWING 489 GRID LOC T.O.S. ELEVATIONREF DWGQTY C-D/1 113'-4"5/8E21 3333 3333 (-312/ ) W16X26 x 18'-8 (-312/ ) 112/ 112/ 0 18'-5 18'-612/ AA B46 112/ 1'-612/ 1'-612/ 0 4 1'-1012/ 3'-6 5'-412/ 4 5'-812/ 3'-6 9'-212/ 4 9'-612/ 3'-6 13'-012/ 4 13'-412/ 3'-6 16'-1012/ 4 17'-212/ 1'-512/ 18'-8 B46 A - A
  • 27.
    QTY. SITE BOLTSLENGTH 3/4"Ø A325N BOLT6 1 3/4" 0 ISSUED TO SHOP 15/11/13 BW A ISSUED FOR APPROVAL 31/10/13 BW REV DESCRIPTION DATE BY ONE - BEAM - B66 CUSTOMER: DRAWN BY: DATE: (D/M/Y) PROJECT: DWG# CANBIAN 22/10/13 ROYAL NORTH CENTER B66 CHECKED BY:DATE: (D/M/Y) REV# 0HOLES: 13/16" Ø U.N.O. PAINT: SSPC-SP3,SHOP GREY PRIMER JOB# 1112 ALL STEEL CRAFT PHONE: (780) 478-6668 FAX: (780) 478-6677 FABRICATORS LTD. MARK QTY DESCRIPTION LENGTH WEIGHT REMARKS MATL ABM# B66 1 B66 1 W14X22 18'-10 5/8" 419 350W 0BEAM Z92 L431 2 L4X3X3/8 5 1/2" 8 300W P48 2 PL3/8"X2 1/4" 1'-1 1/16" 6 350W TOTAL WEIGHT THIS DRAWING 433 GRID LOC T.O.S. ELEVATIONREF DWGQTY D/2-1> 127'-1"1/2E41 333 1 2 W14X22 x 18'-10 58/ 114/ 2 112/ 112/ 0 18'-758/ 18'-918/ 333 L431 14/ 3 SIDES L431 P48 P48 B66 B B A A 8'-918/ 8'-918/ 0 712/ 9'-458/ 4'-8 4'-8 0 4'-41116/ 9'-01116/ 112/112/ L431 L431 P48 P48 B66 258/ 258/ 3212/ 212/ 3212/ L431 L431 B66 A - A 14/ 14/ 3 SIDES P48 P48 B66 B - B
  • 28.
    SHOP NOTE: PROVIDE 38/DIA VENT HOLES IN TOP & BOTTOM OF COLUMNS QTY. SITE BOLTS LENGTH 3/4"Ø A325N BOLT4 2 1/4" GRID LOC REF DWGQTY B/5 E21 0 ISSUED TO SHOP 15/11/13 BW A ISSUED FOR APPROVAL 31/10/13 BW REV DESCRIPTION DATE BY ONE - COLUMN - C3 CUSTOMER: DRAWN BY: DATE: (D/M/Y) PROJECT: DWG# CANBIAN 23/10/13 ROYAL NORTH CENTER C3 CHECKED BY:DATE: (D/M/Y) REV# 0HOLES: 13/16" Ø U.N.O. PAINT: SSPC-SP3,SHOP GREY PRIMER JOB# 1112 ALL STEEL CRAFT PHONE: (780) 478-6668 FAX: (780) 478-6677 FABRICATORS LTD. MARK QTY DESCRIPTION LENGTH WEIGHT REMARKS MATL ABM# C3 1 C3 1 HSS6X6X1/4 27'-11 9/16" 499 CS 1E 350W 0COLUMN Z31 L8 2 L6X4X1/2 7" 19 300W L10 8 L4X4X1/4 4" 18 300W L30 2 L3X3X3/8 6" 7 300W P3 1 PL3/4"X11" 11" 26 350W P31 1 PL3/8"X4" 1'-0" 5 350W P44 3 PL3/8"X4" 9" 11 350W P49 3 PL3/8"X4" 6" 8 350W P59 1 PL3/16"X5 1/2" 5 1/2" 2 350W TOTAL WEIGHT THIS DRAWING 594 34/ 18'-534/ 18'-534/ 0 19'-234/ 19'-234/ 0 14'-034/ 14'-034/ 0 EL.+99'-1 P3 L10 L10L8 L8 C3 North L10 L10 L10 L10 L10 L10 B B D D E E F F E E 2 316/ 18/ 14/512/ 234/ 214/ 22 214/ 212/ 18/ 33 212/ 212/ 28'-012/ (HSS6X6X14/ x 27'-11916/ ) 3 18'-834/ 3 18'-1134/ 6 19'-834/ 7116/ 20'-31316/ 2'-61516/ 22'-1034/ 7116/ 23'-51316/ 3 14'-334/ 3'-1058/ 18'-238/ 3 18'-538/ 3 18'-838/ 8'-978/ 27'-614/ 3 27'-914/ 512/ CUT SQ A A SEAL 14/ 3 SIDES 14/ 14/ 14/ 14/ 14/ L30 L30 P49 P31 P44 P44 P49 P49 P59 P44 2 17'-10716/ 17'-10716/ 0 14'-614/ 14'-614/ 0 13'-278/ 13'-278/ 0 P44 P49 P49 P59 P44 L10 L10 L8L8 C3 L10 L10 L10 L10 L10 L10 1'-01516/ 18'-1138/ 2 18/ 212/ 212/ 18/ 18/ 22 512/ 14/512/ 212/ 214/ 214/ 212/ 212/ 5'-212/ 19'-834/ 7116/ 20'-31316/ 2'-61516/ 22'-1034/ 7116/ 23'-51316/ 3@3 13'-1178/ 4'-938/ 18'-914/ 3 19'-014/ 7'-1118/ 26'-1138/ 3 27'-238/ 3 27'-538/ 14/ 14/ BUILD UP AS REQ'D 14/ 14/ 14/ 14/316/ 3 SIDES 14/ 14/ 14/ 14/ 14/ 14/ L30 L30 P3 P49 P31 P44 22 214/ 214/ 2 2 514/ 514/ C3 North L10 L10 E - E 18/ 18/ P59 P44 P49 C3 North F - F 2 22 18/ 18/ 18/ P44 P49 P44 L8 C3 North D - D 18/ 18/ P49 P31 C3 North B - B 4 4 44 4 x 1516/ "Ø C3 P3 A - A
  • 29.
    SHOP NOTE: PROVIDE 38/DIA VENT HOLES IN TOP & BOTTOM OF COLUMNS QTY. SITE BOLTS LENGTH 0 ISSUED TO SHOP 15/11/13 BW A ISSUED FOR APPROVAL 31/10/13 BW REV DESCRIPTION DATE BY ONE - COLUMN - C19 CUSTOMER: DRAWN BY: DATE: (D/M/Y) PROJECT: DWG# CANBIAN 24/10/13 ROYAL NORTH CENTER C19 CHECKED BY:DATE: (D/M/Y) REV# 0HOLES: 13/16" Ø U.N.O. PAINT: SSPC-SP3,SHOP GREY PRIMER JOB# 1112 ALL STEEL CRAFT PHONE: (780) 478-6668 FAX: (780) 478-6677 FABRICATORS LTD. MARK QTY DESCRIPTION LENGTH WEIGHT REMARKS MATL ABM# C19 1 C19 1 HSS5X5X3/8 26'-11 5/16" 567 CS 1E 350W 0COLUMN Z250 L17 1 L4X3X3/8 1'-11 3/4" 17 CUT 3" LEG 300W L18 1 L4X3X3/8 1'-11 3/4" 17 CUT 3" LEG 300W L27 1 L4X3X3/8 2'-10 3/4" 25 CUT 3" LEG 300W L28 1 L4X3X3/8 2'-10 3/4" 25 CUT 3" LEG 300W P49 3 PL3/8"X4" 6" 8 350W P58 1 PL3/16"X4 1/2" 4 1/2" 1 350W P76 1 PL1/2"X9 1/2" 1'-2 1/4" 15 350W P105 1 PL1"X6" 1'-6 3/4" 32 350W TOTAL WEIGHT THIS DRAWING 705 GRID LOC REF DWGQTY D-E/4 E21 1 516/516/ 516/516/ 412/14/ 27'-012/ (HSS5X5X38/ x 26'-11516/ ) 13'-012/ 13'-012/ 0 3 13'-312/ 5 CUT SQ 516/ EL.+100'-1 SEAL A A P49 P58P49P49 P105 P76 L28 L27 L18 L17 C19 North C C B B 316/ 212/ 912/ 912/ 0 55 212/ 412/ 18/ 212/ 12 1038/ 3 13'-012/ 13'-012/ 0 3 13'-312/ 13'-212/ 26'-6 3 26'-9 14/ 3 SIDES 14/ 14/ 14/ 3 SIDES 516/ 516/ 14/ 14/ P49 P58 P49 P49 P105 P76 L28 L27 L18 L17 C19 11516/538/ 214/ 111316/ 10'-6316/ 11'-6 3 11'-9 3 12'-0 6 12'-6 3@3 13'-3 5 13'-8 3 13'-11 3 14'-2 10'-912/ 24'-1112/ 3 25'-212/ 3 25'-512/ 6 25'-1112/ 3@3 26'-812/ 3 1 12/ 212/ 14/412/ 4316/ 18/ 18/ 112/58/112/ P49 P49 L28 L27 C19 North B - B 112/58/112/ 18/ P58 P49 L18 L17 C19 North C - C 734/ 412/ 412/ 2 33 2 x 1 916/ "Ø C19 North P76 P105 A - A
  • 30.
    QTY. SITE BOLTSLENGTH GRID LOC REF DWGQTY B/1> E21 0 ISSUED TO SHOP 15/11/13 BW A ISSUED FOR APPROVAL 31/10/13 BW REV DESCRIPTION DATE BY ONE - FRAME - F4 CUSTOMER: DRAWN BY: DATE: (D/M/Y) PROJECT: DWG# CANBIAN 27/10/13 ROYAL NORTH CENTER F4 CHECKED BY:DATE: (D/M/Y) REV# 0HOLES: 13/16" Ø U.N.O. PAINT: SSPC-SP3,SHOP GREY PRIMER JOB# 1112 ALL STEEL CRAFT PHONE: (780) 478-6668 FAX: (780) 478-6677 FABRICATORS LTD. MARK QTY DESCRIPTION LENGTH WEIGHT REMARKS MATL ABM# F4 1 F4 1 HSS5X5X3/8 18'-2" 382 CS1E 350W 0FRAME Z226 L10 12 L4X4X1/4 4" 26 300W L118 1 W14X22 5'-8" 126 350W Z19 L130 1 W14X22 5'-8" 126 350W Z19 L247 1 HSS4X4X1/4 6'-2 3/8" 71 350W Z41 L261 1 HSS4X4X1/4 7'-9 11/16" 90 350W Z40 L262 1 HSS4X4X1/4 8'-4 7/16" 96 350W Z122 L274 1 HSS4X4X1/4 5'-8" 65 350W Z39 L323 1 L4X4X1/4 6'-0 3/4" 40 300W Z178 L420 1 L3X3X3/8 5" 3 300W L427 1 HSS4X4X3/16 10 5/16" 8 350W Z230 L487 1 HSS5X5X3/8 26'-11" 566 CS1E 350W Z231 L503 2 HSS4X4X3/16 5'-7 5/16" 99 350W Z11 P18 1 PL1"X6" 1'-1" 22 350W P19 1 PL1"X7 1/2" 1'-1" 28 350W P31 2 PL3/8"X4" 1'-0" 10 350W P44 4 PL3/8"X4" 9" 15 350W P48 2 PL3/8"X2 1/4" 1'-1 1/16" 6 350W P49 1 PL3/8"X4" 6" 3 350W P52 1 PL3/8"X3" 10" 3 350W P55 3 PL3/16"X3 5/8" 3 5/8" 2 350W P121 1 PL1/4"X4" 5 3/4" 2 350W P148 1 PL1/2"X5 3/4" 5 3/4" 5 350W P154 1 PL1/2"X6" 6" 5 350W TOTAL WEIGHT THIS DRAWING 1797 B - B C - C A - A E - E D - D SHOP NOTE: PROVIDE 38/ DIA VENT HOLES IN ENDS OF HSS AS REQ'D 18'-312/ (HSS5X5X38/ x 18'-2") 23'-11 1 12/ 5'-7516/ 316/ 10'-1112/ 10'-1112/ 0 7116/ 11'-6916/ 5'-101516/ 17'-512/ 3 17'-812/ 3 17'-1112/ 434/ 5 212/ 214/ SHOP NOTE: GRIND SMOOTH NS & FS EDGES & AROUND HOLES P154 P121 L503 14/ 14/ L118 L323 L10 L130 L261 L10 L247F4 East L262 L274 P18 P44 316/358/ 23'-712/RD 4 33 5'-712/ 18'-2 1 4 4 0 8'-4 7 16 / 3 7 8/ 13'-012/ 13'-012/ 0 6'-10 6 658/ 658/ 0 6'-1 6'-1012/ A A 14/ 60° PP EL.+100'-1 L420 L10 L247 L10 P48 L10 L10 L10 L261 L130 P49 P44 P18 L274 P19 L262 L487 P44 L10 P52 27'-012/ 27'-11 26'-11 3'-81516/ 26'-212/ P44L10 L10 L10 L10 38/ (14/ ) 44° PP 38/ (14/ ) 44° PP 38/ (14/ ) 46° PP 14/ BS (TYP) 516/ 516/ 316/ 3 SIDES 14/ BS (316/ ) PP, BS 14/ TYP 12/ (14/ ) 38° PP 38/ (14/ ) 46° PP 14/ 14/ 14/ BS, B/E 14/ BS C C B B E E CUT SQ CUT SQ L10 L10 358/ 3 614/ 23'-712/RD 6'-112/ 18/ 6'-034/ 5'-712/ 6'-4 6'-8 6'-318/ 12'-1118/ 4'-812/ 17'-758/ 678/ 18'-212/ 4316/ 4 78/ 6'-2 38/ 3 5 8/ 7'-9 11 16 / 2 1 2/ 6'-10 4'-812/ 6'-138/ 6'-8 5'-814/ 12'-414/ 1'-134/ 13'-6 3'-634/ 17'-034/ SHOP NOTE: GRIND SMOOTH NS & FS EDGES & AROUND HOLES P154 P55 P55 P121 L503 L503 14/ BS 14/ 60° PP (316/ ) PP, BS 14/ 14/ 14/ 45° PP SEAL 14/ 14/ 3 SIDES D D 14/ 14/ 14/ 14/ 14/ 14/ TYP 12/ (14/ ) 44° PP 38/ (14/ ) 46° PP 14/ 60° PP 14/ 60° PP B/E F4 P48 P31 P31 P44 L118 L32322 111116/12 1 9 16 / 2 1 2/ 7 16 / 1 1 2/ 1112/ 12 34/ 5'-5 2516/ 14/ 5'-7516/ 316/ 316/358/316/ 3 38/9516/ 114/ 12/ 1 638/ 212/ 5'-11'-0 12/ 22 17'-818/ 3@3 18/ 214/ 212/ 212/ 638/ 18/ 12 9516/ 4 78/ 3 13'-312/ 3'-758/ 16'-1118/ 638/ 18'-212/ 6 18'-812/ 7116/ 19'-3916/ 2'-61516/ 21'-1012/ 7116/ 22'-5916/ 358/316/ 1012/ 10516/ 316/ 12/ 278/278/ 3 26'-812/ 3 26'-512/ 18/ 212/ P55L427 P148 134/ 134/ 412/ 412/ 5'-812/412/412/ 6'-1 2 x 1 916/ "Ø 4 x 1 916/ "Ø F4 East P19 L487 P18 5'-8 18/ 18/ P31 L118 P49 L261 L247 L487 F4 East 10'-1112/ 10'-1112/ 0 17'-512/ 17'-512/ 0 P19 L10 L10 L10 L10L10 L10 1'-41516/ 18'-212/ 12/ 1012/ 3 17'-812/ 3 17'-1112/ 3 18'-212/ 3 212/ 214/ 214/ 212/ 18/ 22 316/ 212/ 214/ SHOP NOTE: GRIND SMOOTH NS & FS EDGES & AROUND HOLES SEAL 14/ 14/ L427 P148 L420 P52 P31 P49 P31 P44 L247 L262 L261 L274 L118 L130 L487 P44 P44 L10 L10 L10 L10 7116/ 11'-6916/ 8116/ 12'-258/ 3@3 12'-1158/ 3'-278/ 16'-212/ 7116/ 16'-9916/ 3 3 3'-8 21'-1012/ 7116/ 22'-5916/ 3'-81516/ 26'-212/ 6 26'-812/ 3 26'-1112/ 8 27'-712/ 212/ 358/316/ 278/278/ 10516/ 316/ 278/ 278/ 212/278/ 18/ 18/ L427 P148 P44 P44 6'-034/ 614/ 534/ 212/ 212/ 18/ 18/ 18/ 316/ 316/ 14/ P154 P121 L503 L503 P48 14/ 45° GTSM 316/ 3"@12 316/ 3"@12 P44 F4 East L420 P48 P31 P44 L323 14/ 14/ 12/ 4'-612/66 312/ 55 5'-8 4'-1012/912/
  • 31.
    QTY. SITE BOLTSLENGTH GRID LOC REF DWGQTY D/2-1 E21 0 ISSUED TO SHOP 15/11/13 BW A ISSUED FOR APPROVAL 31/10/13 BW REV DESCRIPTION DATE BY ONE - FRAME - F8 CUSTOMER: DRAWN BY: DATE: (D/M/Y) PROJECT: DWG# CANBIAN 30/10/13 ROYAL NORTH CENTER F8 CHECKED BY:DATE: (D/M/Y) REV# 0HOLES: 13/16" Ø U.N.O. PAINT: SSPC-SP3,SHOP GREY PRIMER JOB# 1112 ALL STEEL CRAFT PHONE: (780) 478-6668 FAX: (780) 478-6677 FABRICATORS LTD. MARK QTY DESCRIPTION LENGTH WEIGHT REMARKS MATL ABM# F8 1 F8 1 HSS5X5X3/16 26'-11 9/16" 301 CS1E 350W 0FRAME Z243 L39 1 L4X4X3/8 4 1/2" 4 CUT ONE LEG 300W L44 1 HSS5X5X3/16 26'-11 9/16" 301 CS1E 350W Z242 L45 1 HSS5X5X3/16 26'-10 5/8" 300 CS1E 350W Z108 L81 1 W8X18 6'-0" 109 350W Z98 L95 1 W8X18 8'-7" 156 350W Z86 L165 1 W8X18 6'-0 1/16" 109 350W Z101 L166 1 W8X18 6'-0 1/8" 109 350W Z101 L167 1 W8X10 8'-11 3/4" 91 350W Z89 L182 3 W8X18 8'-7" 467 350W Z86 L217 1 HSS5X5X3/8 9'-1 1/4" 191 350W Z114 L218 1 HSS5X5X3/8 8'-1 3/4" 171 350W Z109 L219 1 HSS5X5X3/8 8'-3 5/16" 174 350W Z113 L221 4 HSS5X5X3/8 8'-7" 722 350W Z84 L222 2 HSS5X5X3/8 8'-7 1/2" 363 350W Z110 L223 1 HSS5X5X3/8 8'-2 1/8" 172 350W Z109 L224 1 HSS5X5X3/8 10'-6 13/16" 222 350W Z87 L225 1 HSS5X5X3/8 10'-7 1/16" 223 350W Z88 L226 1 HSS5X5X3/8 10'-6 3/16" 221 350W Z85 L227 1 HSS5X5X3/8 9'-2 3/4" 194 350W Z112 L228 1 HSS5X5X3/8 9'-6 1/2" 201 350W Z111 L229 1 HSS5X5X3/8 10'-6 1/8" 221 350W Z83 L235 4 HSS5X5X3/8 6'-0" 505 350W Z96 L236 2 HSS5X5X3/8 8'-6 3/16" 358 350W Z95 L237 1 HSS5X5X3/8 8'-7 9/16" 181 350W Z102 L238 2 HSS5X5X3/8 8'-7 3/16" 362 350W Z99 L239 2 HSS5X5X3/8 8'-6 7/16" 359 350W Z97 L240 1 HSS5X5X3/8 8'-6 15/16" 180 350W Z100 L430 1 W8X18 6'-0" 109 350W Z98 L431 1 L4X3X3/8 5 1/2" 4 300W L480 1 HSS5X5X3/16 26'-10 15/16 300 CS1E 350W Z115 P44 2 PL3/8"X4" 9" 8 350W P49 6 PL3/8"X4" 6" 15 350W P57 4 PL3/16"X4 5/8" 4 5/8" 5 350W P107 3 PL3/4"X8 1/2" 8 1/2" 42 350W P108 1 PL3/4"X8 1/2" 11" 17 350W P110 1 PL3/8"X6" 9 1/4" 6 350W Z22 TOTAL WEIGHT THIS DRAWING 7473 212/8'-7212/ 414/ 34/ 34/ 9'-0 33 16 / AA 60° PP EL.+100'-1 F8 North P44 P49 L182 L225 (10'-71 16 / ) L221 L224 (10'-613 16 / ) L221 L229 (10'-61 8/) 26'-11916/ 316/ HSS5X5X316/ x 26'-11916/ 212/ 27'-012/ 212/ 3 26'-614/ 3 13'-034/RD 3 26'-234/ TYP WELD W8 TO HSS TYP WELDS HSS TO HSS A A TYP WELD HSS TO W8 TYP WELD HSS TO HSS 14/ 14/ L165EL.+113'-8 L166 TYP 4 COL'S CUT SQ P57 P57 14/ 14/ 14/ 14/ TYP 14/ 14/ B/E 14/ B/E 14/ 14/ TYP 38/ (14/ ) 54° PP B/E 12/ (14/ ) 36° PP B/E 38/ (14/ ) 55° PP B/E 12/ (14/ ) 35° PP B/E 14/ TYP 38/ (14/ ) 45° PP, BS (TYP) (38/ ) BS (TYP) (14/ ) BS (TYP) 12/ (14/ ) 35° PP B/E 38/ (14/ ) 55° PP B/E (14/ ) BS (TYP) 12/ (14/ ) 35° PP 38/ (14/ ) 55° PP B/E EL.+127'-112/ FRONT VIEW (WEST SIDE) E E D D P49 P49 L44 L182 L226 (10'-63 16 / ) 1 13 16 / 9 16 / 6'-61116/ 13'-2316/ 4116/ 19'-101116/ 13'-614/ 12 9 12 8916/ 12 81316/ 12 814/ 212/ 6 1 2/ 11 2/ 4 212/ 13 16 / 9 16 / 45 16 / 13 8/ 23 8/ 25 16 / 513 16 / 1 2/ 41 8/ 17 16 / 5 8/ 49 16 / 15 16 / 13'-034/ 33 26'-71316/ 316/ 8'-7 10'-1 1 7 8/ 513 16 / 1 2/ 212/6'-0212/ 414/ 61116/ 6'-11 6'-5 60° PP L236 (8'-6 316/ ) L239 ( 8'-6 7 16 / ) L238 ( 8'-7 3 16 / ) L237 ( 8'-7 9 16 / ) TOP VIEW (NORTH SIDE) B B 11 16 / 26'-1178/ 18/ 3 7 16 / 1 16 / 2 11 16 / 2 5 16 / 3 3 8/ 1 9 16 / 1 16 / 11 16 / 3 7 16 / 1 1 2/ 2 3 8/ 2 5 8/ 1 16/ 2 58/ 2 38/ 4 12/ 1138/ 12 1112/ 12 1158/ 12 12 1158/ 27'-012/ L221L221 G G 14/ 3 SIDES SEE FRONT VIEW FOR TYP WELDS NOT SHOWN 38/ (14/ ) 46° PP B/E 12/ (14/ ) 44° PP B/E 38/ (14/ ) 46° PP B/E 12/ (14/ ) 44° PP B/E 38/ (14/ ) 46° PP B/E 12/ (14/ ) 44° PP B/E 12/ (14/ ) 44° PP 38/ (14/ ) 46° PP B/E P57 L182 P44 L182 P44 L167 P57 L431 L480 L165 L81 L235 L235 F8 1 16 / 3 3'-0116/ 212/ 13'-614/ 6'-61116/RD 13'-2316/ 4116/ 19'-101116/ 18/ 18/ 2 5 16 / 2 3 4/ 1 116/ 3'-03'-0116/ 58/ 6'-0116/ 26'-71316/ 18/ 18/ 12 1 1 2/ 112/112/8'-9112/112/ 434/ 6'-2 6'-2 3'-4 9'-0 48'-44 5'-9 6'-5 4 5'-9 4 2 x 1516/ "Ø 2 x 1516/ "Ø 2 x 1516/ "Ø 2 x 1516/ "Ø 2 x 916/ "Ø L44 L45 L480 L218 L223 P107 P107 P107 P108L39 P110 F8 North A - A 112/ 112/ 4 112/ 112/ 112/ 112/ 5'-8 4 112/ 112/ 112/ 112/ 6'-0 8'-7 9'-0 6'-5 2'-111516/ L95 L182 L480 L45L44 P49 P49L431 P49 P49 D - D 116/ SHOP NOTE: INSIDE W8 CORNERS CLIPPED (TYP) L430 212/ 212/ 18/ 212/ 3'-0116/ F8 North L81 116/ 116/ 9'-0 1116/1116/ 916/ 1316/ 278/ 278/ 278/ 278/ 8'-1134/ 18/316/ 316/ 316/ 316/ L167 L166 L165 G - G 212/ 6'-0 212/ 116/ 18/ 18/ 3'-212/ 3'-212/ L182 P57 P57 P57 P49 P49 L45 L44 L167 L166 L165 L182 L480 F8 North P57 E - E 116/ 38/ 38/ 38/ 38/ F8 L81 L182 6'-5 P107 P108 A - A (SOUTH SIDE) 1 116/ 27'-012/ 26'-11916/ 78/ L221 L225 L95 L182 L224L221 L226 L221 L227 L221 L228 L222L218 L229 L430 L39 12/ (14/ ) 44° PP B/E 12/ (14/ ) 44° PP B/E P57 P49 P49 L167 L166 L182 L182 SEE TOP VIEW FOR TYP DIMENSIONS & WELDING NOT SHOWN L238 ( 8'-7 3 16/ ) L240 ( 8'-6 15 16/ ) L239 ( 8'-6 7 16/ ) L236 (8'-63 16 / ) L235(6'-0) L235(6'-0) L44 L45 116/ 2 5 16/ 2 11 16/ 61116/ 414/ 6'-61116/RD 13'-2316/ 4116/ 19'-101116/ 3'-03'-018/ 6'-018/ 18/ 3 3 8/ 1 1 2/ 26'-678/ 18/ 12 5 L218 3"@12 L45 F - F 8'-414/ 8'-414/ 0 55'-33'-4 34/ 38/ 312/ 34/ 34/ 9'-0 14/ 14/ 38/ P107 B - B (EAST SIDE) 97 8/ 12 51116/ 6716/ 4'-61516/ 26'-11316/ 212/ 212/ 26'-1058/ 316/ 26'-101516/ 26'-11916/ 516/ 26'-1178/ 38/ 60° PP 14/ 14/ B/E 14/ B/E14/ TYP 14/ 316/ P57 P57 P110 P49 P49 P44 P49 P108 L45 L480 L165 L166 L95 L81 L430 L221 L222L218 L223 L238 L239 L240 F F F F SEE FRONT VIEW FOR TYP WELDS NOT SHOWN L227(9'-23 4/) L228 (9'-61 2/) L222 L217 ( 9'-1 1 4/ ) L219 ( 8'-3 5 16/ ) 3 8/ 11 12 6716/ 438/ 12 518/ 1 815 16 / 69 16 / 13 16 / 13 8/ 1 2/ 91 4/ 111 8/ 5'-2 13'-614/ 8'-10 22'-414/ 13'-2316/ 4116/ 8'-712/ 8'-134/ 8'-218/ 5 12 1014/ 55'-33'-4 13'-034/ 3 13'-034/RD 3 212/ 212/ 414/ 4 L221 L39 14/ 14/ 38/ 45° PP, BS 38/ 60° PP (14/ ) BS (TYP) 14/ 14/ 12/ (14/ ) 25° PP B/E 14/ 34/ (14/ ) 20° PP B/E 14/ B/E 14/ B/E 12/ (14/ ) 28° PP B/E 14/ 14/ (14/ ) BS (TYP) 14/ BS 58/ (14/ ) 23° PP B/E 14/ 14/ TYP 13 16/ 713 16 / 5 8/ 112/ 1516/ 91 2/ 9 16/ 26'-7316/ 33 26'-5516/ 3 26'-218/ 5 5 8'-7 116/ 12 316/ 14/ 14/ L182
  • 32.
    SHOP NOTE: PROVIDE 38/DIA VENT HOLES IN HSS ENDS AS REQ'D QTY. SITE BOLTS LENGTH 3/4"Ø A325N BOLT7 6" GRID LOC REF DWGQTY <A-C/1> E81 0 ISSUED TO SHOP 15/11/13 BW A ISSUED FOR APPROVAL 31/10/13 BW REV DESCRIPTION DATE BY ONE - FRAME - F17 CUSTOMER: DRAWN BY: DATE: (D/M/Y) PROJECT: DWG# CANBIAN 28/10/13 ROYAL NORTH CENTER F17 CHECKED BY:DATE: (D/M/Y) REV# 0HOLES: 13/16" Ø U.N.O. PAINT: SSPC-SP3,SHOP GREY PRIMER JOB# 1112 ALL STEEL CRAFT PHONE: (780) 478-6668 FAX: (780) 478-6677 FABRICATORS LTD. MARK QTY DESCRIPTION LENGTH WEIGHT REMARKS MATL ABM# F17 1 F17 1 HSS4X4X3/16 31'-1 5/8" 273 MITRE 2E 350W 0FRAME Z23 L434 1 HSS4X4X3/16 9'-5 5/8" 83 MITRE 2E 350W Z1 L435 1 HSS4X4X3/16 8'-2 5/8" 72 MITRE 2E 350W Z42 L439 1 HSS4X4X3/16 5'-0 13/16" 44 MITRE 1E 350W Z42 L442 1 HSS4X4X3/16 6'-3 13/16" 55 MITRE 1E 350W Z1 L447 1 HSS4X4X3/16 2'-9" 24 350W Z2 L448 5 HSS4X4X3/16 2'-6" 110 350W Z20 L458 1 HSS4X4X3/16 30'-6" 268 350W Z23 L459 1 HSS4X4X3/16 3'-4 5/8" 30 MITRE 2E 350W Z2 L460 1 HSS4X4X3/16 5'-4 5/8" 47 MITRE 2E 350W Z43 L509 9 L4X4X3/8 3" 22 300W P143 4 PL3/8"X3" 6 1/4" 8 350W Z174 P144 2 PL3/8"X3" 10" 6 350W Z174 P157 1 PL3/8"X3" 7 1/2" 2 350W Z174 P158 4 PL3/8"X4" 7 1/2" 13 350W Z174 TOTAL WEIGHT THIS DRAWING 1059 1'-38'-3 L447 L509 L509 L509 L442 L460 L435 P157 L509 L509 L509 L509 F17 North L509 L448 L448 L458 L509 B B A A 21'-45'-02'-102 22'-8 5'-3 2 3'-1 5'-8 5'-8 5'-8 5'-8 5'-1 316/ 316/ 9'-6 12 12 D D 14/ P158 P143 P143 P143 P143 P144P144 P158 P158 P158 14/ (18/ ) PP, BS (TYP) 14/ TYP 14/ TYP 316/ PP, BS (TYP) 316/ TYP C C L439 L448 L448 L448 L434 L459 112/434/ 31'-2 2'-6 112/434/ 55 2'-9 22434/ 112/ 112/434/ 55 112/112/ 25'-12'-102 3'-3RD 8'-11 14'-7 20'-3 25'-11 31'-0 3'-5 22'-4 5'-5 3'-3 L448 L448 L458 L509 L509 L509 L509 L509 L509 L509 L442 L435L439L448L448 L448 L434 C - C 612/ 212/ 3'-3RD 8'-11 14'-7 20'-3 25'-11 31'-2 4 30'-6 4 1 X (1316/ "x1 116/ ") SLOTS 1 X (1316/ "x1 116/ ") SLOTS 14/ 3 SIDES P158 P143P143P143 P144P144 P158 P158 12/ 6 212/ 4116/ P143 P158 L458 L509 L448 D - D 3'-2116/ 12/ 6 4 212/ 212/ 9'-68'-0418/2'-91516/RD 316/6'-31316/42'-64 14/ 3 SIDES 14/ 3 SIDES P143 P144 P158 L509 L442 L509 L458 L448 L509 F17 North A - A 3'-2116/ 8'-1418/2'-91516/RD 12/ 6 212/ 212/ 8'-3 316/5'-01316/42'-6 14/ 3 SIDES P144 1 X (1316/ "x1 116/ ") SLOTS L439 L460 L509 L509 P157 L509 L458 L448 F17 North B - B
  • 33.
    SHOP NOTE: GRIND SMOOTHALL WELDS & EDGES QTY. SITE BOLTS LENGTH GRID LOC REF DWGQTY B/2 E141 G/2 E141 0 ISSUED TO SHOP 29/11/13 BW A ISSUED FOR APPROVAL 25/11/13 BW REV DESCRIPTION DATE BY 2 - CAGED_LADDERS - M3 CUSTOMER: DRAWN BY: DATE: (D/M/Y) PROJECT: DWG# CANBIAN BW 25/11/13 ROYAL NORTH CENTER M3 CHECKED BY:DATE: (D/M/Y) IC3D REV# 0HOLES: 13/16" Ø U.N.O. PAINT: SSPC-SP3,SHOP GREY PRIMER JOB# 1112 ALL STEEL CRAFT PHONE: (780) 478-6668 FAX: (780) 478-6677 FABRICATORS LTD. MARK QTY DESCRIPTION LENGTH WEIGHT REMARKS MATL ABM# M3 2 M3 2 PL1/2"X2 1/2" 14'-6 7/16" 124 350W 0CAGED_LADDERS L583 16 L8X4X1/2 4" 105 300W L584 2 ROD3/4" 1'-8 1/2" 5 350W L585 26 ROD3/4" 1'-8 1/2" 66 300W P177 2 PL1/2"X2 1/2" 14'-6 7/16" 124 350W P178 4 PL1/2"X2 1/2" 6'-4 15/16" 109 350W P179 2 PL3/8"X22 1/4" 1'-11 1/2" 110 CHECKERED PL 300W P194 14 PL1/4"X2" 5'-11" 141 350W P195 2 PL1/4"X2" 7'-4 1/2" 25 350W P196 2 PL1/4"X2" 11'-3 1/2" 38 350W P197 2 PL1/4"X4" 11'-1 3/4" 76 350W P198 2 PL1/4"X2" 11'-1 3/4" 38 350W TOTAL WEIGHT THIS DRAWING 962 1'-1112/2'-714/ 714/ 114/114/ AA 4'-038/ 12'-3 2 1'-9 5'-11 8'-558/RD 5'-1112/ 14'-6 1012/ 1012/ 0 3'-1 3'-1112/ 3'-1 7'-012/ 2'-0 9'-012/ 5'-512/ 14'-6 2 2 2 22 22 2 D D 316/ 316/ 316/ 3 SIDES F F E E C C BB 14/ 3 SIDES L583 L583 L583 L583 L583 L583 L583 L583 L584 P195 P196 P197 P194 P194 P194 P194 P194 P194 P194 P198 P179 M3 P177 P178 P178 418/ 1'-0 1'-0 10'-6 14/ 2 2 2'-512/ 14/ 114/114/ 8'-012/ 14/ 14/ 4 1'-9 14/ R 1 6 558/ 558/ 0 21'-92 12/1'-812/ A - A 3'-838/ 10@1'-0 10'-558/ 11316/ 10'-7716/ 2 2'-0 1316/ G TYP P195 P196 P197P198L583 L583 L583 L583 L583 L583 L583 L583 L585 L585 L585L584 L585 L585 L585L585 L585 L585 L585 P179 14/1'-812/14/ 10'-7716/ 2316/ 12 12 2'-51516/ 2316/ 3'-838/ 6'-412/ 418/ 1'-0 1'-0 11316/ 2 2'-0 1'-8 P178 P178 P179 L585 L585 L585 B - B 4'-734/ 1'-01 16/ 1'-0 116/ 434/ 434/ 40° R1'-51 4/ 11316/1'-0316/ 11'-1112/1'-21'-514/ 316/ 316/ (TYP) P197 P194 P194 P194 P194 P194 P194 P194 M3 P177 P178 P178 C - C 2'-1 1'-0116/ 1'-01 16 / 1'-01 16/ 1'-012/ 1'-012/ 1'-01 16/ 238/ 58/ 1'-9 58/ 316/ 316/ P196 P179 E1 - E1 10 118/ 1'-8 1'-1014/ E2 E2 E1 E1 P178 P178 P177 M3 P179 CHK'D PL L585 P194 P194 P194 P194 P194 P194 P194 P196 L585 E - E 1'-11516/ 1'-1112/1'-21'-514/ 1'-9 112/ 134/ 316/ 316/ 1012/ 1012/ 1116/1'-11516/ 1'-21'-514/ R1'-514/ 2'-714/ 316/ 3 SIDES P195 P194 P194 P194 P194 P194 P194 P194 M3P177 F - F R1'-51 4/ 1'-012/ 1'-012/ 11316/ 11'-1112/1'-21'-514/ 316/ 316/ P194 P194 P194 P194 P194 P194 P194 P198 M3P177 P178 P178 D - D 1'-1112/ 14/ 14/ L585 L585 P179 E2 - E2
  • 34.
    QTY. SITE BOLTSLENGTH 3/4"Ø A325N BOLT8 2 1/4" 0 ISSUED TO SHOP 15/11/13 BW A ISSUED FOR APPROVAL 31/10/13 BW REV DESCRIPTION DATE BY ONE - VBRACE - V11 CUSTOMER: DRAWN BY: DATE: (D/M/Y) PROJECT: DWG# CANBIAN 24/10/13 ROYAL NORTH CENTER V11 CHECKED BY:DATE: (D/M/Y) REV# 0HOLES: 13/16" Ø U.N.O. PAINT: JOB# 1112 ALL STEEL CRAFT PHONE: (780) 478-6668 FAX: (780) 478-6677 FABRICATORS LTD.MARK QTY DESCRIPTION LENGTH WEIGHT REMARKS MATL ABM# V11 1 V11 1 HSS4X4X1/4 16'-1" 184 350W 0VBRACE Z246 P81 1 PL1/2"X7" 1'-6 15/16" 19 350W P94 2 PL1/2"X6" 1'-1" 22 350W P100 2 PL3/16"X1 9/16" 3 5/8" 1 350W P115 1 PL1/2"X7" 1'-7 1/8" 19 350W P150 2 PL3/16"X1 9/16" 3 5/8" 1 350W TOTAL WEIGHT THIS DRAWING 246 GRID LOC REF DWGQTY D-E/4 E71 2'-71116/ 2'-71116/ 0 2'-758/ 2'-758/3'-6316/ 3'-6316/ 0 212/ 0 16'-1 16'-1 2'-101316/ 2'-101316/ RD 6 17'-0 17'-21516/ (HSS4X4X14/ x 16'-1") 33 112/112/ 716/51116/51116/716/ 11516/318/ 318/11516/ 1'-4 18/ 3915 16/ 3 12 1038/ 12 134/ 3 3 14/ 14/ P100 14/ 14/ 14/ 14/ P81P115 P150 P150 V11 P94 P94 P100 3 212/ 512/ 214/ 2'-91516/ 4'-9516/ 7'-714/ 21516/ 7'-1014/ 91116/ 3'-5516/ NOTCH 3'-1078/ 7'-4316/ 738/ 7'-11916/ NOTCH 214/ 3'-812/ 3'-8716/ 7'-41516/ 21516/ 7'-71516/ 212/ 16'-312/ 3 16'-612/ 91116/ 3'-8916/ NOTCH 3'-7116/ 7'-358/ 738/ 7'-11 NOTCH 112/112/ 6 316/ 618/CUT 916/CUT 14/916/ N/S&F/S NOTCH 916/CUT 1916/12/1916/ 916/ N/S&F/S NOTCH 316/ 6 618/ CUT SEAL P100 P81P115 P150 P150 P100 P94 P94 V11
  • 35.
    QTY. SITE BOLTSLENGTH 3/4"Ø A325N BOLT8 2 1/4" 0 ISSUED TO SHOP 15/11/13 BW A ISSUED FOR APPROVAL 31/10/13 BW REV DESCRIPTION DATE BY ONE - VBRACE - V12 CUSTOMER: DRAWN BY: DATE: (D/M/Y) PROJECT: DWG# CANBIAN 24/10/13 ROYAL NORTH CENTER V12 CHECKED BY:DATE: (D/M/Y) REV# 0HOLES: 13/16" Ø U.N.O. PAINT: JOB# 1112 ALL STEEL CRAFT PHONE: (780) 478-6668 FAX: (780) 478-6677 FABRICATORS LTD. MARK QTY DESCRIPTION LENGTH WEIGHT REMARKS MATL ABM# V12 1 V12 1 HSS4X4X1/4 6'-9 1/8" 78 350W 0VBRACE Z246 P94 2 PL1/2"X6" 1'-1" 22 350W P100 4 PL3/16"X1 9/16" 3 5/8" 1 350W TOTAL WEIGHT THIS DRAWING 101 GRID LOC REF DWGQTY D-E/4 E71 33 6 3 212/ 512/ 212/0 6'-9116/ 6'-9116/ 212/ 6'-11916/ 3 7'-2916/ 6 7'-8116/ (-312/ )7'-11116/ (HSS4X4X14/ x 6'-918/ )(-1'-5116/ ) 112/112/ 112/112/ 14/ 14/ P100 P100 P100 V12 P94 P94 P100 916/CUT 916/CUT 1916/12/1916/ 1916/12/1916/ 6 316/316/ 6 618/CUT618/ CUT SEAL P100 P100 P100 P100 P94 P94 V12
  • 36.
    CUSTOMER: DRAWN BY: DATE:(D/M/Y) PROJECT: DWG# CANBIAN BW 27/01/14 WESTGATE E1 CHECKED BY:DATE: (D/M/Y) IC3D REV# 1HOLES: 13/16" Ø U.N.O. PAINT: GALVANIZED JOB# 1169 ALL STEEL CRAFT PHONE: (780) 478-6668 FAX: (780) 478-6677 FABRICATORS LTD. 1 STIARS UPDATED 21/02/14 BW 0 ISSUED FOR CONSTRUCTION 29/01/14 BW A ISSUED FOR APPROVAL 27/01/14 BW REV DESCRIPTION DATE BY R4 R2 ISOMETRIC VIEW F1 R5 S2 R3 R1 S1 P1 B1 R1 ISOMETRIC VIEW S2 B1 S1 F1 R5 R2
  • 37.
    SHOP NOTE: 1) FULLYWELD ALL PIPE JOINTS 2) GRIND SMOOTH ALL WELDS & EDGES QTY. SITE BOLTS LENGTH 3/4"Ø A325N BOLT6 2 1/2" 3/4"Ø A325N BOLT2 2" GRID LOC REF DWGQTY -/ E21 1 STAIRS UPDATED 21/02/14 BW 0 ISSUED TO SHOP 29/01/14 BW A ISSUED FOR APPROVAL 27/01/14 BW REV DESCRIPTION DATE BY ONE - RAIL - R3 CUSTOMER: DRAWN BY: DATE: (D/M/Y) PROJECT: DWG# CANBIAN BW 27/01/14 WESTGATE R3 CHECKED BY:DATE: (D/M/Y) IC3D REV# 1HOLES: 13/16" Ø U.N.O. PAINT: GALVANIZED JOB# 1169 ALL STEEL CRAFT PHONE: (780) 478-6668 FAX: (780) 478-6677 FABRICATORS LTD. MARK QTY DESCRIPTION LENGTH WEIGHT REMARKS MATL ABM# R3 1 R3 1 PIPE1-1/4STD 8'-6 1/8" 18 A53 0RAIL L20 15 ROD3/8" 3'-1 1/2" 17 300W L23 20 ROD3/8" 2'-3 3/8" 17 300W L36 1 PIPE1-1/4STD 4 5/8" 1 A53 L37 1 PIPE1-1/4STD 4 5/16" 1 A53 L38 1 PIPE1-1/4STD 3'-3 13/16" 7 A53 L41 1 PIPE1-1/4STD 3'-6 11/16" 8 A53 L42 1 PIPE1-1/4STD 2'-9 5/16" 6 A53 L77 1 PIPE1-1/4STD 4'-4 9/16" 9 A53 L78 1 PIPE1-1/4STD 4'-9 3/4" 10 A53 L81 1 PIPE1-1/4STD 3 1/8" 1 A53 L85 1 PIPE1-1/4STD 1'-0 7/16" 2 A53 L86 1 PIPE1-1/4STD 3'-4 13/16" 7 A53 L87 1 PIPE1-1/4STD 3'-6" 8 A53 L88 1 PIPE1-1/4STD 4'-3 5/8" 9 A53 L89 1 PIPE1-1/4STD 6'-8 1/4" 14 A53 L93 1 PIPE1-1/4STD 6 1/8" 1 A53 L97 1 ROD3/8" 2'-4 3/16" 1 300W L98 1 ROD3/8" 2'-9 3/16" 1 300W L99 1 ROD3/8" 2'-6 13/16" 1 300W L100 1 ROD3/8" 2'-4 3/8" 1 300W P7 1 PL3/8"X2 1/4" 8 1/2" 2 300W P9 1 PL3/8"X2 1/4" 7 1/2" 2 300W P10 1 PL3/8"X2 1/4" 7 1/2" 2 300W P13 1 PL3/8"X2 1/4" 8" 2 300W TOTAL WEIGHT THIS DRAWING 148 3516/3'-41116/4'-1112/1316/ 8'-838/ DET. A P13 A A 2 x (1"x1316/ ") SLOTS L38 L42 L93 L36 L37 R3 P7 17@378/ 26@31316/ 2'-0 1116/ 4 2'-5 1116/ 12 32.13° 712/ 118/2'-7516/2'-878/ 4'-612/578/ 8'-6 1 2/ 4'-10 15 16/ 6'-7316/ 7'-21316/ 1316/ 111116/ 4'-6716/ 4'-11516/ 4'-11516/ 1316/ 13'-111116/ 2'-518/1 3'-878/ 5116/ 19- L23 L20 14- L20 2 x (1"x1316/ ") SLOTS 2 x (1"x1316/ ") SLOTS L97 L98 L99 L100 L77 L78 L85 L86 P10 L87 P9 L41 L88 L89 L81 434/3'-1516/ 1316/ 1316/ 2 1 2/ 1116/ 3'-61516/ 43'-3316/ 3'-7 9 16/ 2 1 2/ 3 1 2/ 4'-10 15 16/ 2 3 4/ 1116/ 116/212/2'-8516/ 41316/ 2'-814/ 3'-2316/ 212/ 3316/ L78 P13 L93 L36 L38 L42 R3 P7L85 L86 P10 L87 P9 L41 L88L89 L81 212/ 3316/ 41516/ L77 3'-218/ 312/ 41516/ L77 R3 P13 NO PAINT 2" FROM END PREP TO RECIEVE 114/ STD PIPE OR LEAVE AS SHOWN OR EXTRA LONG FOR FIELD FIT UP (TOP RAIL ONLY) L36 L37 L38 L93 A - A 118/118/ 212/ 3316/ 2 x (1"x1316/ ") SLOTS P13 L36 L38 L93 DETAIL A
  • 38.
    SHOP NOTE: 1) FULLYWELD ALL PIPE JOINTS 2) GRIND SMOOTH ALL WELDS & EDGES QTY. SITE BOLTS LENGTH 3/4"Ø A325N BOLT8 2 1/2" GRID LOC REF DWGQTY -/ E21 1 STAIRS UPDATED 21/02/14 BW 0 ISSUED TO SHOP 29/01/14 BW A ISSUED FOR APPROVAL 27/01/14 BW REV DESCRIPTION DATE BY ONE - RAIL - R4 CUSTOMER: DRAWN BY: DATE: (D/M/Y) PROJECT: DWG# CANBIAN BW 27/01/14 WESTGATE R4 CHECKED BY:DATE: (D/M/Y) IC3D REV# 1HOLES: 13/16" Ø U.N.O. PAINT: GALVANIZED JOB# 1169 ALL STEEL CRAFT PHONE: (780) 478-6668 FAX: (780) 478-6677 FABRICATORS LTD. MARK QTY DESCRIPTION LENGTH WEIGHT REMARKS MATL ABM# R4 1 R4 1 PIPE1-1/4STD 9'-9 3/4" 21 A53 0RAIL L20 9 ROD3/8" 3'-1 1/2" 10 300W L23 23 ROD3/8" 2'-3 3/8" 19 300W L29 1 PIPE1-1/4STD 3'-0 3/4" 7 A53 L33 1 PIPE1-1/4STD 4 1/16" 1 A53 L39 1 PIPE1-1/4STD 2'-10 3/8" 6 A53 L42 1 PIPE1-1/4STD 2'-9 5/16" 6 A53 L45 2 PIPE1-1/4STD 3'-7 5/8" 16 A53 L55 1 PIPE1-1/4STD 3'-2 9/16" 7 A53 L76 1 PIPE1-1/4STD 4'-6" 10 A53 L78 1 PIPE1-1/4STD 4'-9 3/4" 10 A53 L102 1 ROD3/8" 2'-3 7/16" 1 300W P6 1 PL3/8"X5" 6 1/4" 2 350W P7 1 PL3/8"X2 1/4" 8 1/2" 2 300W P10 2 PL3/8"X2 1/4" 7 1/2" 4 300W TOTAL WEIGHT THIS DRAWING 121 8'-81516/ 2'-7516/2'-558/3'-8 43'-3316/ AA 2 x (1"x1316/ ") SLOTS 2 x (1"x1316/ ") SLOTS L45 L45 L33 L55 L42 P10 L29 R4 P6 P7 8'-9 1'-5 1 2/ 9'-10 3 8/ 2'-5 12/ 1316/ 2'-4 1116/2'-0 1116/ 4 712/ 32.13° 12 716/ 116/434/2'-518/5'-21116/758/1316/ 2'-1038/5'-1058/ 116/434/2'-518/ 1116/ 2'-91516/1 7 16/ 4'-10 15 16/ 4'-10 15 16/ 212/ 2 1 2/ 3 1 2/ 212/ 114/ 212/ 11'-6716/ 1316/ 4'-11516/ 4'-11516/ 3'-01516/ 1316/ 11- L23 11- L23 L39 L102 L23 L76 P10 L78 2 3 4/ 2 1 2/ 2'-7916/ 3'-10116/ 378/ 26@31316/ =8'-31516/ 31116/ 9@31116/ =2'-9316/ L76 L42 R4 P6 P7 L29 P10 L45L45 L33 L39 P10 L78 334/ 212/ 212/ 334/ 1 x (1"x1316/ ") SLOTS 1 x (1"x1316/ ") SLOTS P6 L45 A - A
  • 39.
    SHOP NOTE: GRIND SMOOTHALL EXPOSED WELDS & EDGES QTY. SITE BOLTS LENGTH 3/4"Ø A325N BOLT2 1 3/4" 3/4"Ø A325N BOLT6 2" GRID LOC REF DWGQTY -/ E21 1 STAIRS UPDATED 21/02/14 BW 0 ISSUED TO SHOP 29/01/14 BW A ISSUED FOR APPROVAL 27/01/14 BW REV DESCRIPTION DATE BY ONE - STAIR - S1 CUSTOMER: DRAWN BY: DATE: (D/M/Y) PROJECT: DWG# CANBIAN BW 27/01/14 WESTGATE S1 CHECKED BY:DATE: (D/M/Y) IC3D REV# 1HOLES: 13/16" Ø U.N.O. PAINT: GALVANIZED JOB# 1169 ALL STEEL CRAFT PHONE: (780) 478-6668 FAX: (780) 478-6677 FABRICATORS LTD. MARK QTY DESCRIPTION LENGTH WEIGHT REMARKS MATL ABM# S1 1 S1 1 C12X20.7 11'-11 15/16 250 300W 0STAIR L1 1 C8X11.5 3'-0" 34 300W L5 1 C12X20.7 11'-0 5/16" 230 300W L7 1 C12X20.7 5'-0 13/16" 106 300W L8 1 C12X20.7 5'-0 13/16" 106 300W L10 1 C12X20.7 2'-5 1/2" 51 300W L60 1 L3X3X3/8 9 1/2" 6 300W P3 1 PL1/4"X2 5/8" 6 3/16" 1 350W P16 10 GRTG1 1/4"X12 1/8" 3'-0" 98 GALV STAIR TREAD GRTA_1_1/4 40 3/8"Ø A307 BOLT 1 1/2" 3 Workshop TOTAL WEIGHT THIS DRAWING 884 10@678/=5'-9558/ 10- P16 FULL STRENGTH SPLICE L8 L10 L1 S1 3716/ 16.06° 12 33 4/ 718/ 9'-11 3 7 16 / 3716/ 2 11'-2 15 16 / RD 5 15 16 / 9 7 1 16 / 1'-41 16 / 5 15 16 / 1'-10 7 1 16 / 2'-51 16 / 7 1 16 / 6'-9 5 15 16 / 7'-215 16 / 7 1 16 / 7'-10 5 15 16 / 8'-315 16 / 7 1 16 / 8'-1015 16 / 5 15 16 / 9'-47 8/ 7 1 16 / 9'-1115 16 / 5 15 16 / 10'-57 8/ 1'-6 1 16 / 11'-1115 16 / 5'-71516/ 9@11=8'-3 3'-21516/ 33 112/ 338/ 3'-1134/ 333 4'-8 5 8/ 4'-85 8/ 0 5'-0 1 8/ 10'-23 4/ 134/ 1'-81316/ 81116/ 4'-938/ 9'-11 2'-512/ 212/ 1'-018/ 7 118/ 212/334/ 3 11'-11 15 16 / 3716/ 16.06° 12 3716/ 17'-178/ 14/ 14/ NO WELD @ TREAD 14/ 20 - 716/ Ø HOLES 38/ Øx 1 12/ A307 GALVANIZED 518/ 5'-01316/ 3 1 16 / 31 16 / 0 6 10'-83 4/ 6 5'-25 8/ 33 31 16 / 4 81516/ 1'-078/ 2'-2116/ 712/ 32.13° 12 1 21 8/ 1 5 16 / 5 15 16 / 2'-11 7 1 16 / 3'-61 16 / 5 15 16 / 4'-0 7 1 16 / 4'-7 5 15 16 / 5'-015 16 / 7 1 16 / 5'-8 5 15 16 / 6'-115 16 / 14'-0316/ 134/ 13'-101516/ 13'-101516/ 17'-178/ 14'-1716/ 134/ 14/ P3 P3 A A L8 L7 L10 L5 L1 L60 S1 3'-0 4'-71116/ 1 14/ 3'-21516/ 212/ 516/258/ 3'-0716/ 31116/ 10- P16 GALV STEEL TREAD (19-4) 316/ x114/ SERR BAR STD END PL'S & W/CHK'D PL NOSING 5'-71516/ 9@11=8'-3 214/ 33 4/ 31 16 / 10'-3 3 4/ RD 518/ 718/ 5 15 16 / 9 7 1 16 / 1'-41 16 / 5 15 16 / 1'-10 7 1 16 / 2'-51 16 / 558/ 4'-8 5 8/ 4'-85 8/ 0 6'-658/ 5'-01316/ 9'-038/ 14/ 14'-0316/ 14'-1716/ 11'-0 5 16 / B B 14/ 3 SIDES SEE MAIN VIEW FOR TYP DIM'S & WELDS NOT SHOWN P3 L60 L7 L5 L1 A - A 333 33 3 1 16 / 31 16 / 0 112/ 338/ 3'-1134/ 15 16 / 53 16 / 3 14/ 1 1 4/ 2 1 8/ 5 15 16 / 5'-015 16 / 7 1 16 / 5'-8 5 15 16 / 6'-115 16 / 7 1 16 / 6'-9 5 15 16 / 7'-215 16 / 7 1 16 / 7'-10 5 15 16 / 8'-315 16 / 7 1 16 / 8'-1015 16 / 5 15 16 / 9'-47 8/ 7 1 16 / 9'-1115 16 / 1058/ 9@678/=5'-218/ 4'-10 3 8/ 10'-1 234/ 3 7 16 / 3 7 16 / 15 16 / 4116/ 112/ 514/ 1 212/ 4916/ 338/ 23 16 / 39 16 / 13 16 /51 2/ 6316/516/ 20 - 716/ Ø HOLES 38/ Øx 1 12/ A307 GALVANIZED 9- P16 (N/S) 6 5'-25 8/ 5 15 16 / 2'-11 7 1 16 / 3'-61 16 / 5 15 16 / 4'-0 7 1 16 / 4'-7 4316/612/ 5 15 16 / 10'-57 8/ 1078/ 2 1 2/ 10'-31 2/ 31058/ 514/ 2116/ 516/ 258/ 134/ 6316/ P16 2 x (1316/ "x1") SLOTS P3 L60 L5 B - B