1
HAKA 150/51h Technical data
Version 07/2017
Hoxter gmbh I Hersbrucker Straße 23 I 912 44 Reichenschwand I Germany I info@hoxter.de I +49 (0)9151 8659 163
Hoxter a.s. I Mlynska 326/13 I 602 00 Brno I Czech Republic I info@hoxter.eu I +420 518 777 701
Operation when directly connected to chimney
Tested according to EN 13229
Nominal heat power 16 kW
Efficiency > 80 %
Consumption of wood 4,5 kg/h
Mass flow of flue gas 15,8 g/s
Average flue gas temperature
on the output 251 °C
Heat distribution
fireplace insert
door glass (single / double)
57–68 %
43 / 32 %
Required chimney pressure 12 Pa
Required amount of combustion air 45 m3
/h
Minimum supply air grating cross-section 1 400 cm2
Minimum outgoing air grating cross-section 1 700 cm2
General technical information
Combustion air connection Ø 150 mm
Total weight / lining weight ca. 536 / 175 kg
Use in non-ventilated accumulation builds according to craft rules suitable
Meets values BImSchV (Stufe2), 15a BVG
Operation with connected accumulation mass
Load of wood 6 kg
Total heat output of the burning chamber 24 kW
Mass flow of flue gas 20 g/s
Average flue gas temperature
on the output 1)
past 3 m of ceramic accumulation system KMS 300 2)
403 °C
185 °C
Heat distribution
fireplace insert
door glass (single / double)
adjoining accumulation mass
40 %
43 / 32 %
17–28 %
Required chimney pressure 12 Pa
Minimum radiant area 3)
ca 5,5 m2
Required amount of combustion air 60 m3
/h
1)	 The Hoxter products are available in the Austrian stove-calculation program for evaluation of firebrick accumulation systems.
2)	 Only a sample calculation! For accurate results is evaluation of each system in the KMS-calculation program from the Ortner company necessary.
3)	 Depends on accumulation period and material characteristics and its thickness. Calculated with heat emission of the radiant area ca. 500 W/m2
.hr
2
1488
ø250
1708
127850-110
137 519
M 1 : 10
HAKA 150/51h Technical data
Version 07/2017
Hoxter gmbh I Hersbrucker Straße 23 I 912 44 Reichenschwand I Germany I info@hoxter.de I +49 (0)9151 8659 163
Hoxter a.s. I Mlynska 326/13 I 602 00 Brno I Czech Republic I info@hoxter.eu I +420 518 777 701
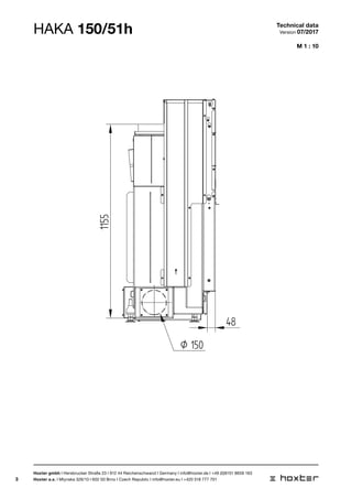
3
Ø 150
1155
48
M 1 : 10
HAKA 150/51h Technical data
Version 07/2017
Hoxter gmbh I Hersbrucker Straße 23 I 912 44 Reichenschwand I Germany I info@hoxter.de I +49 (0)9151 8659 163
Hoxter a.s. I Mlynska 326/13 I 602 00 Brno I Czech Republic I info@hoxter.eu I +420 518 777 701
4
ø250
1708
19
50-110
137
533
M 1 : 10
HAKA 150/51h Technical data
Version 07/2017
Hoxter gmbh I Hersbrucker Straße 23 I 912 44 Reichenschwand I Germany I info@hoxter.de I +49 (0)9151 8659 163
Hoxter a.s. I Mlynska 326/13 I 602 00 Brno I Czech Republic I info@hoxter.eu I +420 518 777 701
5
M 1 : 10
BLENDRA
1526
50-110
124 546
HAKA 150/51h Technical data
Version 07/2017
Hoxter gmbh I Hersbrucker Straße 23 I 912 44 Reichenschwand I Germany I info@hoxter.de I +49 (0)9151 8659 163
Hoxter a.s. I Mlynska 326/13 I 602 00 Brno I Czech Republic I info@hoxter.eu I +420 518 777 701
cover frame 4-sided 1 x 90°, 50 mm
6
M 1 : 10
BLENDRAHMEN 150/51 4SEITIG 1 x 90 50MM
95-105
50-60
140514
HAKA 150/51h Technical data
Version 07/2017
Hoxter gmbh I Hersbrucker Straße 23 I 912 44 Reichenschwand I Germany I info@hoxter.de I +49 (0)9151 8659 163
Hoxter a.s. I Mlynska 326/13 I 602 00 Brno I Czech Republic I info@hoxter.eu I +420 518 777 701
cover frame 4-sided 1 x 90°, 50 mm
7
M 1 : 10
50-110
124
1526
1494
HAKA 150/51h Technical data
Version 07/2017
Hoxter gmbh I Hersbrucker Straße 23 I 912 44 Reichenschwand I Germany I info@hoxter.de I +49 (0)9151 8659 163
Hoxter a.s. I Mlynska 326/13 I 602 00 Brno I Czech Republic I info@hoxter.eu I +420 518 777 701
cover frame 4-sided 1 x 90°, 50 mm
8
M 1 : 10
BLENDRAH
1526
50-110
124 546
HAKA 150/51h Technical data
Version 07/2017
Hoxter gmbh I Hersbrucker Straße 23 I 912 44 Reichenschwand I Germany I info@hoxter.de I +49 (0)9151 8659 163
Hoxter a.s. I Mlynska 326/13 I 602 00 Brno I Czech Republic I info@hoxter.eu I +420 518 777 701
cover frame 4-sided 1 x 90°, 80 mm
9
M 1 : 10
BLENDRAHMEN 150/51 4SEITIG 1 x 90 80MM
125-135
80-90
514140
HAKA 150/51h Technical data
Version 07/2017
Hoxter gmbh I Hersbrucker Straße 23 I 912 44 Reichenschwand I Germany I info@hoxter.de I +49 (0)9151 8659 163
Hoxter a.s. I Mlynska 326/13 I 602 00 Brno I Czech Republic I info@hoxter.eu I +420 518 777 701
cover frame 4-sided 1 x 90°, 80 mm
10
M 1 : 10
50-110
124
1526
1494
HAKA 150/51h Technical data
Version 07/2017
Hoxter gmbh I Hersbrucker Straße 23 I 912 44 Reichenschwand I Germany I info@hoxter.de I +49 (0)9151 8659 163
Hoxter a.s. I Mlynska 326/13 I 602 00 Brno I Czech Republic I info@hoxter.eu I +420 518 777 701
cover frame 4-sided 1 x 90°, 80 mm
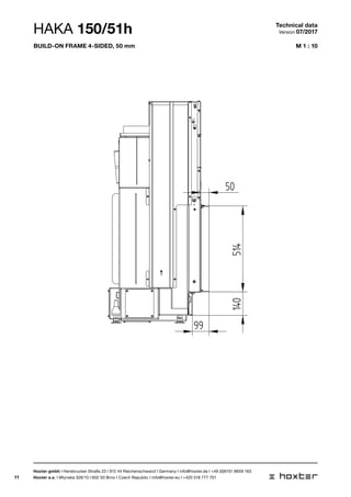
11
M 1 : 10
ANBAURAHMEN 150/51 4SEITIG 50MM
50
514
99
140
HAKA 150/51h Technical data
Version 07/2017
Hoxter gmbh I Hersbrucker Straße 23 I 912 44 Reichenschwand I Germany I info@hoxter.de I +49 (0)9151 8659 163
Hoxter a.s. I Mlynska 326/13 I 602 00 Brno I Czech Republic I info@hoxter.eu I +420 518 777 701
Build-on frame 4-sided, 50 mm
12
M 1 : 10
1494
HAKA 150/51h Technical data
Version 07/2017
Hoxter gmbh I Hersbrucker Straße 23 I 912 44 Reichenschwand I Germany I info@hoxter.de I +49 (0)9151 8659 163
Hoxter a.s. I Mlynska 326/13 I 602 00 Brno I Czech Republic I info@hoxter.eu I +420 518 777 701
Build-on frame 4-sided, 50 mm
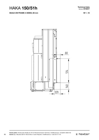
13
M 1 : 10
ANBAURAHMEN 150/51 4SEITIG 80MM
80
514
129
140
HAKA 150/51h Technical data
Version 07/2017
Hoxter gmbh I Hersbrucker Straße 23 I 912 44 Reichenschwand I Germany I info@hoxter.de I +49 (0)9151 8659 163
Hoxter a.s. I Mlynska 326/13 I 602 00 Brno I Czech Republic I info@hoxter.eu I +420 518 777 701
Build-on frame 4-sided, 80 mm
14
M 1 : 10
1494
HAKA 150/51h Technical data
Version 07/2017
Hoxter gmbh I Hersbrucker Straße 23 I 912 44 Reichenschwand I Germany I info@hoxter.de I +49 (0)9151 8659 163
Hoxter a.s. I Mlynska 326/13 I 602 00 Brno I Czech Republic I info@hoxter.eu I +420 518 777 701
Build-on frame 4-sided, 80 mm

Hoxter Haka 150/51h

  • 1.
    1 HAKA 150/51h Technicaldata Version 07/2017 Hoxter gmbh I Hersbrucker Straße 23 I 912 44 Reichenschwand I Germany I info@hoxter.de I +49 (0)9151 8659 163 Hoxter a.s. I Mlynska 326/13 I 602 00 Brno I Czech Republic I info@hoxter.eu I +420 518 777 701 Operation when directly connected to chimney Tested according to EN 13229 Nominal heat power 16 kW Efficiency > 80 % Consumption of wood 4,5 kg/h Mass flow of flue gas 15,8 g/s Average flue gas temperature on the output 251 °C Heat distribution fireplace insert door glass (single / double) 57–68 % 43 / 32 % Required chimney pressure 12 Pa Required amount of combustion air 45 m3 /h Minimum supply air grating cross-section 1 400 cm2 Minimum outgoing air grating cross-section 1 700 cm2 General technical information Combustion air connection Ø 150 mm Total weight / lining weight ca. 536 / 175 kg Use in non-ventilated accumulation builds according to craft rules suitable Meets values BImSchV (Stufe2), 15a BVG Operation with connected accumulation mass Load of wood 6 kg Total heat output of the burning chamber 24 kW Mass flow of flue gas 20 g/s Average flue gas temperature on the output 1) past 3 m of ceramic accumulation system KMS 300 2) 403 °C 185 °C Heat distribution fireplace insert door glass (single / double) adjoining accumulation mass 40 % 43 / 32 % 17–28 % Required chimney pressure 12 Pa Minimum radiant area 3) ca 5,5 m2 Required amount of combustion air 60 m3 /h 1) The Hoxter products are available in the Austrian stove-calculation program for evaluation of firebrick accumulation systems. 2) Only a sample calculation! For accurate results is evaluation of each system in the KMS-calculation program from the Ortner company necessary. 3) Depends on accumulation period and material characteristics and its thickness. Calculated with heat emission of the radiant area ca. 500 W/m2 .hr
  • 2.
    2 1488 ø250 1708 127850-110 137 519 M 1: 10 HAKA 150/51h Technical data Version 07/2017 Hoxter gmbh I Hersbrucker Straße 23 I 912 44 Reichenschwand I Germany I info@hoxter.de I +49 (0)9151 8659 163 Hoxter a.s. I Mlynska 326/13 I 602 00 Brno I Czech Republic I info@hoxter.eu I +420 518 777 701
  • 3.
    3 Ø 150 1155 48 M 1: 10 HAKA 150/51h Technical data Version 07/2017 Hoxter gmbh I Hersbrucker Straße 23 I 912 44 Reichenschwand I Germany I info@hoxter.de I +49 (0)9151 8659 163 Hoxter a.s. I Mlynska 326/13 I 602 00 Brno I Czech Republic I info@hoxter.eu I +420 518 777 701
  • 4.
    4 ø250 1708 19 50-110 137 533 M 1 :10 HAKA 150/51h Technical data Version 07/2017 Hoxter gmbh I Hersbrucker Straße 23 I 912 44 Reichenschwand I Germany I info@hoxter.de I +49 (0)9151 8659 163 Hoxter a.s. I Mlynska 326/13 I 602 00 Brno I Czech Republic I info@hoxter.eu I +420 518 777 701
  • 5.
    5 M 1 :10 BLENDRA 1526 50-110 124 546 HAKA 150/51h Technical data Version 07/2017 Hoxter gmbh I Hersbrucker Straße 23 I 912 44 Reichenschwand I Germany I info@hoxter.de I +49 (0)9151 8659 163 Hoxter a.s. I Mlynska 326/13 I 602 00 Brno I Czech Republic I info@hoxter.eu I +420 518 777 701 cover frame 4-sided 1 x 90°, 50 mm
  • 6.
    6 M 1 :10 BLENDRAHMEN 150/51 4SEITIG 1 x 90 50MM 95-105 50-60 140514 HAKA 150/51h Technical data Version 07/2017 Hoxter gmbh I Hersbrucker Straße 23 I 912 44 Reichenschwand I Germany I info@hoxter.de I +49 (0)9151 8659 163 Hoxter a.s. I Mlynska 326/13 I 602 00 Brno I Czech Republic I info@hoxter.eu I +420 518 777 701 cover frame 4-sided 1 x 90°, 50 mm
  • 7.
    7 M 1 :10 50-110 124 1526 1494 HAKA 150/51h Technical data Version 07/2017 Hoxter gmbh I Hersbrucker Straße 23 I 912 44 Reichenschwand I Germany I info@hoxter.de I +49 (0)9151 8659 163 Hoxter a.s. I Mlynska 326/13 I 602 00 Brno I Czech Republic I info@hoxter.eu I +420 518 777 701 cover frame 4-sided 1 x 90°, 50 mm
  • 8.
    8 M 1 :10 BLENDRAH 1526 50-110 124 546 HAKA 150/51h Technical data Version 07/2017 Hoxter gmbh I Hersbrucker Straße 23 I 912 44 Reichenschwand I Germany I info@hoxter.de I +49 (0)9151 8659 163 Hoxter a.s. I Mlynska 326/13 I 602 00 Brno I Czech Republic I info@hoxter.eu I +420 518 777 701 cover frame 4-sided 1 x 90°, 80 mm
  • 9.
    9 M 1 :10 BLENDRAHMEN 150/51 4SEITIG 1 x 90 80MM 125-135 80-90 514140 HAKA 150/51h Technical data Version 07/2017 Hoxter gmbh I Hersbrucker Straße 23 I 912 44 Reichenschwand I Germany I info@hoxter.de I +49 (0)9151 8659 163 Hoxter a.s. I Mlynska 326/13 I 602 00 Brno I Czech Republic I info@hoxter.eu I +420 518 777 701 cover frame 4-sided 1 x 90°, 80 mm
  • 10.
    10 M 1 :10 50-110 124 1526 1494 HAKA 150/51h Technical data Version 07/2017 Hoxter gmbh I Hersbrucker Straße 23 I 912 44 Reichenschwand I Germany I info@hoxter.de I +49 (0)9151 8659 163 Hoxter a.s. I Mlynska 326/13 I 602 00 Brno I Czech Republic I info@hoxter.eu I +420 518 777 701 cover frame 4-sided 1 x 90°, 80 mm
  • 11.
    11 M 1 :10 ANBAURAHMEN 150/51 4SEITIG 50MM 50 514 99 140 HAKA 150/51h Technical data Version 07/2017 Hoxter gmbh I Hersbrucker Straße 23 I 912 44 Reichenschwand I Germany I info@hoxter.de I +49 (0)9151 8659 163 Hoxter a.s. I Mlynska 326/13 I 602 00 Brno I Czech Republic I info@hoxter.eu I +420 518 777 701 Build-on frame 4-sided, 50 mm
  • 12.
    12 M 1 :10 1494 HAKA 150/51h Technical data Version 07/2017 Hoxter gmbh I Hersbrucker Straße 23 I 912 44 Reichenschwand I Germany I info@hoxter.de I +49 (0)9151 8659 163 Hoxter a.s. I Mlynska 326/13 I 602 00 Brno I Czech Republic I info@hoxter.eu I +420 518 777 701 Build-on frame 4-sided, 50 mm
  • 13.
    13 M 1 :10 ANBAURAHMEN 150/51 4SEITIG 80MM 80 514 129 140 HAKA 150/51h Technical data Version 07/2017 Hoxter gmbh I Hersbrucker Straße 23 I 912 44 Reichenschwand I Germany I info@hoxter.de I +49 (0)9151 8659 163 Hoxter a.s. I Mlynska 326/13 I 602 00 Brno I Czech Republic I info@hoxter.eu I +420 518 777 701 Build-on frame 4-sided, 80 mm
  • 14.
    14 M 1 :10 1494 HAKA 150/51h Technical data Version 07/2017 Hoxter gmbh I Hersbrucker Straße 23 I 912 44 Reichenschwand I Germany I info@hoxter.de I +49 (0)9151 8659 163 Hoxter a.s. I Mlynska 326/13 I 602 00 Brno I Czech Republic I info@hoxter.eu I +420 518 777 701 Build-on frame 4-sided, 80 mm