FURIA HELICOPTER -
Plans Delivery.com COPYRIGHT©2001 Osvaldo Durana
1
OSVALDO DURANA
FURIA
HOMEBUILT HELICOPTER
CONSTRUCTION PLANS
Specifications
Main Rotor Diameter: 19 ft.
Tail Rotor Diameter: 3.6 ft.
Height: 6.9 ft.
Lenght: 12.5 ft.
Max Gross Wt.: 700 lbs.
Empty W.: 325 lbs.
Payload (with full fuel) 350 lbs.
Fuel Capacity: 8 gal.
Seats: 1
Range: 80 sm.
Takeoff distance: 0 ft.
Landing Distance: 0 ft.
Vmax: 95 mph (max allowable speed
-level flight sea level, std. Day)
Vcr: 70 mph
Climb rate @ msl: 1.100 fpm
Service Ceiling: 12.500 ft
Engine: Rotax 65 hp
A-17-1
Visit www.plansdelivery.com
regularly for Updates, News
and Tips. PERSPECTIVE VIEW
FURIA HELICOPTER -
Plans Delivery.com COPYRIGHT©2001 Osvaldo Durana
SIDE VIEW
TOP VIEW
TOP AND SIDE VIEWS
2
OSVALDO DURANA
FURIA HELICOPTER -
Plans Delivery.com COPYRIGHT©2001 Osvaldo Durana
MAIN ROTOR HEAD
3
MAINROTORHEAD
OSVALDO
DURANA
FURIA HELICOPTER -
Plans Delivery.com COPYRIGHT©2001 Osvaldo Durana 4
MAIN ROTORHEADASSEMBLY
1
2
3
4
5
6
7
8
5 9 10 11
12
3
2
13
14
15
17 18 19 20
18
13
11
10
9
5
6
7
16
12
3
1 - Pivot head (2)
2 -Blade grip (4)
3 -Reinforcement strap (4)
4 - Bolt AN3 (2)
5 -Claw (4)
6 -Shell type bearing BK1514RS (2)
7 - Axle A (2)
8 - Elastic stop nut AN 364-1032 (2)
9 - Shell type bearing BK1522 (2)
10 - Thrust bea. AXW15 - (2)
washers AS1528 (2)
LS1528 (2)
11 - Axle B (2)
12 - Axle housing (2)
13 - Axle grip (2)
14 - Elastic stop nut AN 365-524 (4)
15 - Blade control horn (2)
16 - Center plates (3)
17 - Bolt AN3 (8)
18 - Bolt AN4 (8)
19 - Bolt AN3 (2)
20 - Bolt AN5 (4)
Not shown:
Elastic stop nuts AN 365-428 (8)
Elastic stop nuts AN 365-1032 (8)
PART LIST -
Key number / Name / (Quantity)
OSVALDO
DURANA
FURIA HELICOPTER -
Plans Delivery.com COPYRIGHT©2001 Osvaldo Durana 5
MAINROTORHEAD
Top View
Section A-A
Upper Blade Grip
A A
Blade Control Horn Note: Upper blade grip and reinforcement strap have
been omited to show central plates and other
components.
Bearings from INA Catalog
INA BEARING COMPANY, INC.
One Ina Drive, Cheraw,
South Carolina 29520
Phone: (803) 537-9341
Side View
Blade Control Horn
Pivot HeadAxle Grip
Claws
Axle Housing
Upper Blade Grip
Reinforcement Strap
1
Axle
Reinforcement Strap Shell Type Bearings
A B C
2
Thrust Bearings and washers
Axle CenterPlates
Bearings: A= Shell Type BK1514 RS (sealed) 2 Req’d. B= Shell Type BK1522 (2 Req’d.) C= Thrust (neddle roller) AX15 -
Washers AS 1528 and LS 1528 (2 of each one req’d)
FURIA HELICOPTER -
Plans Delivery.com COPYRIGHT©2001 Osvaldo Durana
1
2
3
4
5
6
7
8
9
10
111213
14
15
12
11
16
17
18
19
20
21
22
23
24
25
26 27
28
29
30
31
34
33
32
35 36
1) Blade control master horn
2) Control sliding axle
3) Ball
4) Shell type bearing HK 1522
5) Main rotor axle
6) Bearing cover
7) Bushing
8) Race / bushing
9) Pivot head
10) Center plates
11) Gasket
12) Bearing 7013
13) Main gear
14) Gearbox housing upper half
15) Gearbox housing lower half
16) Gearbox attachment ring
17) Race / nut
18) Ball / Bearing housing
19) Ball race
20) Nut B
21) Cyclic/Collective central link
22) Main rotor mast
23) Bearing 6002 Z
24) Nut A
25) Central uniball housing
26) Central Push-Pull tube
27) Pinion shaft
28) Gasket
29) Snap ring
30) Bearing 6205
31) Pinion housing
32) Push-Pull axle
33) Bushing
34) Pin
35) Pinion
36) Gearbox lid
6
MAINROTORANDGEARBOX
Key number / Name / (Quantity)
FURIA HELICOPTER -
Plans Delivery.com COPYRIGHT©2001 Osvaldo Durana 7
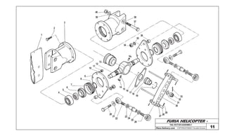
1
2
3 4 5 6 7
8
9
10 5
11
12
13
14
13
15
1) Main rotor shaft
2) Main gear
3) Bolt AN3 (25)
4) Gearbox housing upper half
5) Gasket (3)
6) Bolt AN3 (10)
7) Gearbox lid
8) Ball bearing 7013 (2)
9) Gearbox housing lower half
10) Elastic stop nut AN 365-1032 (25)
11) Pinion
12) pInion shaft
13) Ball Bearing 6205 (2)
14) Pinion housing
15) Gaskets
Not shown:
*main shaft woodroff keys (3)
* Pinion housing internal snap ring.
Part List
Key number / name / Quantity
MAIN ROTORGEARBOXASSEMBLY
OSVALDODURANA
FURIA HELICOPTER -
Plans Delivery.com COPYRIGHT©2001 Osvaldo Durana 8
12
13
14
15
16
17
18
19
20
21
22
8 5 6 7 6 5
10
11
12
1
2
3
4
1) Main rotor gearbox
2) Gearbox attachment ring
3) Bolt AN4 (6)
4) Main rotor mast
5) Bushing (2)
6) Bushing A ( 2)
7) Ball
8) Main rotor axle
9) Pin
10) Control sliding axle
11) Bushing
12) Push-Pull axle
13) Race-nut
14) Ball bearing housing
15) Bearing 600 Z (1)
16) Nut A
17) Nut B
18) Ball race
19) Central uniball housing
20 ) Elastic stop nut AN364-1032 (1)
21) Central Push-Pull tube
22) Bolt AN3 (1)
Part List
Key number/name/quantity
MAIN GEARBOX/CONTROL SYS. ASSY.
OSVALDODURANA
FURIA HELICOPTER -
Plans Delivery.com COPYRIGHT©2001 Osvaldo Durana 9
14
13
12
11
10
9
8
7
6
4
5
4
3
2
1
17 18 19
1) Collective central push-pull tube
2) Main rotor tube mast
3) Cyclic push-pull tube
4) Bushing spacers (4)
5) Cyclic upper bellcranck (2)
6) Cotter pin (6)
7) Clevis pin AN394 (4)
8) Elastic stop nut AN364-428 (2)
9) Upper Bellcranck mounting bracket (2)
10) Rod end HMVV-4 (2)
11) Locking nut AN316-4R (2)
12) Control linkage (2)
13) Locking nut AN316-4L (2)
14) Rod end HMLVV-4 (2)
15) Clevis pin AN394 (2)
16) Cyclic/collective central link (1)
17) Bolt AN4 (2)
18) Bolt AN3 (8)
19) Bellcranks central bracket
20) elastic stop nut (not shown)
AN365-1032 (8)
CONTROLSYSTEM
OSVALDODURANA
Key number / Name / (Quantity)
FURIA HELICOPTER -
Plans Delivery.com COPYRIGHT©2001 Osvaldo Durana 10
Cyclic control stick
Cyclic control push-pull tubes
(A and B)
B
Spacer
Lever
Lateral stop
Torque tube
Bracket
A
Collective Linkage
Central push-pull tube
Bellcranks mounting ring
Collective lower bellcranck
Collective control stickCyclic lower bellcrank
Cyclic control
Push-pull tube (fore-aft)
Nylon bushing
Travel limiting
stop
Cyclic stick holder
CONTROLSYSTEM
O
SVA
LD
O
D
U
R
A
N
A
FURIA HELICOPTER -
Plans Delivery.com COPYRIGHT©2001 Osvaldo Durana 11
1
2
3
4
5
6
7
8
9
10
11
12
13
14
15
16
17
18
19
20
21
22
23
24
25
26
27
28
29
33
32
31
30
34
35
36
37
3839
40
TAILROTOR ASSEMBLY
OSVALDO DURANA
FURIA HELICOPTER -
Plans Delivery.com COPYRIGHT©2001 Osvaldo Durana 12
1
2
3
4
5
6
7
8
9
10
11
12
13
14
15
16
17
18
19
20
21
22
23
24
25
27
23
26
TAILROTORGEARBOXASSEMBLY
OSVALDO DURANA
FURIA HELICOPTER -
Plans Delivery.com COPYRIGHT©2001 Osvaldo Durana 13
1 23
22
21
6
7
8
9
10
18
17
16
13
19 20
15
13
14
11
11
12
13
6
3
2
4
5
3
2
TAIL ROTOR PITCH CONTROL ASSY.
OSVALDO DURANA
Attach tail rotor hub here
13
FURIA HELICOPTER -
Plans Delivery.com COPYRIGHT©2001 Osvaldo Durana
TAIL ROTOR GEARBOX
1) Pinion
2) Gasket
3) Bolt AN3
4) Flat Washer
5) Bearing Cover (Large)
6) Bearing 16005
7) Pitch Control Axle
8) Bolts AN3
9) Bolts AN3
10) Gearbox Lid
11) Gearbox Housing
12) Oil Screws
13) Bearing EE5
14) Bushing Spacer
1) Tail Rotor Blade
2) Bolt AN3
3) Tail Blade Grip
4) Bearing 6200
5) Axle Nut
6) Bearing FAG 525277
7) Blade Grip Nut
8) O’Ring
9) Pitch Control Horn
10) Flat Washer
11) Elastic Stop Nut
12) Axle
13) Tail Rotor Hub
14) Axle Pivot Nut
15) Axle Pivot Screw
16) Pin
17) Pitch Control Head Guide
18) Retainer Nut
19) Safety Wire Spring
20) Bolt AN4
26) Rod End Male HMVV4
27) Flat Washer
28) Clevis Pin
29) Cotter Pin
30)Pitch Control Head
31) Flat Washer
32) Castle Nut
33) Cotter Pin
34) Elastic Stop Nut
35) Flat Washer
36) Bushing
37) Bolt AN4
38) Flat Washer
39) Flat Washer
40) Elastic Stop Nut
21) Conical Washer
22) Rod End Male HMLVV-4
23) Nut AN316-4R
24) Control Linkage
25) Nut AN316-4R
15) Bolt AN3
16) Nut C
17) Gasket
18) Bolt AN3
19) Bearing Cover (Small)
20) Gearbox Rear Cap
21) Flat Washer
22) Bolts AN4
23) Bearing
24) Gasket
25) Nut D
26) Steel Bushing
27) Gear
TAIL ROTOR ASSEMBLY TAIL ROTOR PITCH CONTROL
ASSEMBLY
1) Tail Rotor Gearbox
2) Scissors Hinge
3) Bolt AN3H
4) Scissors B and Axle
5) Lever
6) Scissors A
7) Bearing Housing
8) Bearing
9) Internal Snap Ring
10) Self Locking Castle Nut/Cotter Pin
11) Bolt AN3
12) Turnbuckle Assy. AN150-16L
13) Elastic Stop Nut AN364-1032
14) Pulley Arm
15) Bolt AN4
16) Control Cable Galvanized 1/8”-7x19
17) Cable Clamp
18) Bolt AN3
19) Control Pulley
20) Bolt AN3
21) Flat Washer
22) Elastic Stop Nut AN365-428
23) Tail Boom
Not Shown: Bolts AN3H to attach
gearbox to tail boom
11
12
13
Part List - page 11
Part List - page 12
Part List - Page 13
PART LIST - PAGES 11-12-13
14
FURIA HELICOPTER -
Plans Delivery.com COPYRIGHT©2001 Osvaldo Durana 15
4
3
2
1
5
6 7 8
9
10
13
14
11
12
1) Retaining washer (3)
2) Nylon bushing (3)
3) Internal bracket (3)
4) Elastic stop nut AN365-1032 (18)
5) Bolt AN3 (9)
6) Shaft ends (2)
7) Elastic stop nut AN364-428 (4)
8) Bolt AN4 (4)
9) Shaft
10) Raceway (3)
11) Tail boom tube
12) Bolt AN3 (9)
13) Inspection hole cover (3)
14) Sheet metal screws (6)
TAIL BOOM SHAFT ASSY
OSVALDO DURANA
Key number / Name / (Quantity)
FURIA HELICOPTER -
Plans Delivery.com COPYRIGHT©2001 Osvaldo Durana 16
Upper control pulley
assembly
DETAIL B
Main rotor mast
Directional control pedals
B
Cable fairleads
Tail boom
Control pulley
Tail rotor gearbox attach
here
A
DETAIL A
Control pulley assembly
CONTROLSYSTEM
OSVALDO DURANA
Central
Gearbox
FURIA HELICOPTER -
Plans Delivery.com COPYRIGHT©2001 Osvaldo Durana 17
8
5676’5’
10
9
10
3
4
1
2
11
12
13 14
17
16
15
6’
6
5
9
10
75’
1) Left control pedal
2) Right control pedal
3) Main lever
4) Bolt AN4-6A (2)
5) Rod ends male threaded HMVV-4 (2)
5’) Rod ends male threaded HMVV-4 left hand thd. (2)
6) Locking nut AN316-4R (thin check nut) (2)
6’) Locking nut AN316-4L (thin check nut) (2)
7) Control linkage
8) Bolt AN4-11A (2)
9) Conical safety washer (2)
10) Elastic stop nut AN364-428 (4)
11) Turnbuckle end AN669-S4 LH (2)
12) Barrel AN155-32S (2)
13) Pin eye AN165-32 SR (2)
14) Pedals axle
15) Clevis pin AN394-17 (2)
16) Cotter pin (2)
17) Flat washers (4)
CONTROL SYSTEM - PEDAL ASSY
OSVALDODURANA
Key number / Name / (Quantity)
FURIA HELICOPTER -
Plans Delivery.com COPYRIGHT©2001 Osvaldo Durana 18
19 dia 1.65 wall thk
(3/4” Dia .065 wall Thk)
SIDE VIEW
720
(28.35)
340
(13.38)
380
(14.96)
460
(18.11)
790
(31.10)
1970
(77.55)
250
(9.84)
14,3 D. 1,65
(9/16” Dia
.065 W.Thk)
90
(3.54)
320
(12.6)
14.2 Dia 1.65 W.Thk.
(3/4” .065 W.Thk.)
570
(22.44)
22,2 Dia 1,65 Thk
(7/8” .065 Thk)
12,7 Dia. 1,65 Thk
(1/2” Dia. .065)
330
(13.0)
14,2 Dia.
1,65 W.Thk.
(3/4” .065)
740
(28.35)
250
(9.85)
1630
(64.17)
TOP VIEW
Material :4130 Steel tubing
PRIMARYSTRUCTURE
FURIA HELICOPTER -
Plans Delivery.com COPYRIGHT©2001 Osvaldo Durana
40 Dia
(1-9/16”)
To fit inside
skid tubes
6 (.25)
19
(3/4”)
Bevel
80
(3.15)
120
(4.72)
SECTION
A-A
A
A
PERSPECTIVE VIEW
TOP VIEW
SIDE VIEW
REAR VIEW
1500
(59.06)
A
810
(31.89)
410
(16.15)
O.D. 40 - 2,4 Wall Thickness 4130 Steel
(1-9/16” x .095 W.Thk)
1750
(68.90)
840
(33.07)
Weld all around
55
(2.18)
B
R 240
(9.45)
50
(1.97)
DETAIL B
Skids Caps
Mat: Aluminum 4 Req’d
DETAIL A
Reinforcements
4130 Steel 2,3 (.090)
19
LANDINGGEARSKIDS
FURIA HELICOPTER -
Plans Delivery.com COPYRIGHT©2001 Osvaldo Durana
Tail skid
Tail boom
Bracket B
Bracket A
Main rotor mast
DETAIL A Rotor mast attachment brackets
Drill and tap for AN4-H
Bolts 1/4” - 28
USE SAFETY WIRE
Mat: 4130 Steel
2 (.080) Thk
Lenght 40 (1.57)
Inner ring
Mat: Steel (.198)
W.Thk
Pop Rivet ring in
proper position,
then drill and tap
according brackets
ADETAIL D
Pedals brackets mat: 4130 Steel 2
(.080) Thk 2 req’d
55
(2.165)
34
(1.338)
6.35 D
(.250)
22
(.866) Flat washer
welded
D
125
(4.921)
B
C
DETAIL B
Rotor mast lower bracket
8 (.315)
Attach to bellcranks ring with AN5H bolts
USE SAFETY
WIRE
2) 4130 Steel tubes
3/4” O.D.
.065 wall thk
DETAIL C
Landing gear skid seat
Mat: 4130 Steel 2 (.080) Thk
4 req’d
44
(1.732)
WELD TO STRUCTURER 11
(.433)
16
(.630)
R 20 (.787)
26 Dia
(1.024)
36
(1.417)
6,35 D
(.250) Attach landing gear skids with AN4 bolts
and elastic stop nuts
20
PRIMARYSTRUCTURE
OSVALDO DURANA
FURIA HELICOPTER -
Plans Delivery.com COPYRIGHT©2001 Osvaldo Durana 21
Bracket A
18
(.709)
18
(.709)
6
(.23)
102
(4.0)
4,7 Dia (.185) 9,5 Dia (.374)
25,4
(1.0)
Welded to
primary structure
REAR VIEW SIDE VIEW
BRACKET B
2 (.080) Thk
70
(2.76)
approx.
102
(4.0)
34
(1.34) REF
19
(.748)
6,35 Dia
(.250)
60
(2.36)
SIDE VIEW
To fit aluminum tail
tubes
FRONT VIEW
TAIL BOOM BRACKETS
Material: 4130 Steel
TAIL SKID (Tail rotor protector)
Material: 4130 steel tubes 0,8
(.035) Wall Thickness
TAIL BOOM TUBE
975
(38.38)
35 Degrees
15,8 Dia
(5/8”)
12,7 Dia
(1/2”)
R 60
(2.36)
6
deg.
575
(22.64)
200
(7.87)
Tail Skid
Side view
Rearview
TAIL BOOM
FURIA HELICOPTER -
Plans Delivery.com COPYRIGHT©2001 Osvaldo Durana 22
500
(19.68)
100
(3.937)
25
(1.0)
45
Degree
25
(1.0)
1
4
95
(3.74)
160
(6.29)
300
(11.81)
80 Dia
(3.15) 2
95
(3.74)
5
4 (.157)
Holes
67 Dia
(2.64) 6
80
(3.15)
60 Dia
(2.64)
7
89 Dia
(3.504) 3
Front View
250
(9.84)
75
Deg.
60
Deg.
400
(15.75)
1- ALTIMETER
2- R.P.M.
3- AIRSPEED
4- IGNITION KEY
5- TURN and BANK
6- CYLINDER HEAD TEMP
7- EXHAUST GAS TEMP
Suggested instruments
Material: 3 (1.181) thk 6061-T6 aluminum
INSTRUMENTPANEL
FURIA HELICOPTER -
Plans Delivery.com COPYRIGHT©2001 Osvaldo Durana
BLADE GRIP
23
40
(1.575)
18
(.708)
6,35
(.250)
6
(.236)8
(.315)
23
(.905)
8 (.315)
5
(.187)
40
(1.575)
39
(1.535)
7,9 (.3125) for counterweight
mounting (on upper plates only)
11
(.433)
29
(1.142)
7,9 (.3125)
76
(2.992)
54
(2.126)
156
(6.142)
20
(.787)
R 10
(.394)
7,9 (.3125)
215
(8.464)
6,35 (.250)
32
(1.260)
12
(.472)
R 2,5
(.0984)
54
(2.126)
22
(.866)
62
(2.441)
FULL SIZE
Bushing
Mat: Steel tube
O.D. 1/2” I.D. 5/16” - (2) Req’d
81
(3.20)
Blade Grip
Counterweight
Mat: 1045 Steel
2 Req’d.
40
(1.575)
23
(.905)
8
(.315)
5 (.197) 10
(.394)
FULL SIZE
FULL SIZE
MAIN ROTOR COMPONENTS
FURIA HELICOPTER -
Plans Delivery.com COPYRIGHT©2001 Osvaldo Durana 24
Center Plate
47
(1.850)
28,2
(1.110)
8
(.315)
Mat: 2024-T3 Aluminum 5 (.197) Thk (3) Req’d.
Bend along centerline to match pivot head
(4 degrees)
42
(1.653)
51
(2.007)
62
(2.441)
40
(1.575)
CL
Bending
Line
62
(2.441)
6 (.236)
52
(2.047)
110
(4.331)
4,75
(.187)
4,75 (.187)
ABBA
350 (13.780)
80
(2.559)
80
(2.559)
Reinforcement Strap
Mat: 2024-T3 Aluminum
5 (.197) Thk (4) Req’d.
19
(.747)
54
(2.126)
29
(1.142)
7,9 (.3125)
134
(5.276)
32
(1.260)
6,35 (.250)
62
(2.441)
22
(.866)
12
(.472)
R 2,5
(.0984)
215
(8.464)
MAIN ROTOR COMPONENTS
FURIA HELICOPTER -
Plans Delivery.com COPYRIGHT©2001 Osvaldo Durana 25
Axle Grip
Mat: 2024-T3 Aluminum
(2) Req’d.
7(.276)
32
(1.259)
46
(1.812)
Axle B fits here
23
(.906)
4 (.158)
4 (.158)
R 23 (.906)
28
(1.103)
7,93 (.3125)
29
(1.142)
54
(2.126)
15.000
14.992
(.59056)
(.59024)
40
(1.575)
51
(2.00)
Axle A
Axle B
Axles
(2) of each req’d.
Mat: 8620 Steel
Heat Treatment: Case hardening
Minimun surface hardness:
58 Rockwell C
Efective case depth: 0,3 (.012)
(after finish grinding)
Axle Housing
Mat: 2024-T3 Aluminum
(2) Req’d.
22
(.866)
6,35
(.250)
32
(1.260)
46
(1.812)
Axle A is
Press Fit
here
54
(2.126)
FULL SIZE
FULL SIZE
FULL SIZE
MAIN ROTOR COMPONENTS
FURIA HELICOPTER -
Plans Delivery.com COPYRIGHT©2001 Osvaldo Durana 26
15
(.591)
A
A
FRONT
VIEW
BOTTOM VIEW
28
(1.103)
10
(3.94)
H
Dia
20.976
20.989
(.82583)
(.82634)
8
(.315)
4,75 (.187) Hole
16
(.630)
3
(.119)
18
(.709)
37
(1.458)
28
(1.103)
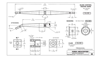
CLAW FULL SIZE
Mat: 4140 Steel
(4) Req’d.
H Bearing housing
Shell type bearings are installed here with the aid of a press
219
(8.622)
6(.236)
45
Deg.
2 (.0787)
1/4”-28 UNF
10 (.394)
26 Degree
82
(3.228)
2 (.0787)
21
(.827)
13,950
(.5492)
8-32 UNF
AFTER BENDING
9
(.354)
17
(.669)
BLADE CONTROL
MASTER HORN
Mat: 1045 Steel
(1)req’d
FULL SIZE
MAIN ROTOR COMPONENTS
BUSHING Mat: Steel (1) Req’d. FULL SIZE
23
(.906)
14.000
(.55118)
14.020
(.55197)
28.980
1.14094
32
(1.260) 6 (.236)
10
(.394)
2 (.0787)
FURIA HELICOPTER -
Plans Delivery.com COPYRIGHT©2001 Osvaldo Durana 27
44
(1.733)
10
(.394)
16
(.630)
6,35 (.250)
4,75 (.187)
1/4”-28 UNF
6,35
(.250)
5
(.197)
13 (.512)
8 (.315)
30
(1.182)
48
(1.890)
56
(2.205)
32
(1.260)
112
(4.410)
43
(1.693)
9
(.355)
37
(1.457)
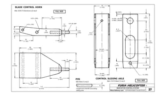
BLADE CONTROL HORN
Mat: 2024-T3 Aluminum (2) req’d
FULL SIZE
35
(1.378)
2 (.0787)
14.000 (.55118)
13.980 (.55039)
15
(.591)
R 11
(.433)
64
(2.523)
31
(1.220)
122
(4.805)
12 (.472)
16
(.630)
31 (1.220)
6 (.236)
30.000
(1.181)
32.000
(1.260)
4,5
(.177)
CONTROL SLIDING AXLE
Mat: 41410 Steel (1) req’d. FULL SIZE
MAIN ROTOR /CONTROL SYSTEM
PIN
Mat Steel (1) req’d.
Lenght and chamfer according
sliding axle
6 (.236)
FURIA HELICOPTER -
Plans Delivery.com COPYRIGHT©2001 Osvaldo Durana 28
CONTROL SYSTEM
5 (.197)
2,5 (.098)
5/16”-24 UNF
12 (.472) 7 (.275)
18
(.709)
162
(6.378)
205
(8.071)
22
(.866)
13.990 (.55079)
14.000 (.55119)
10
(.394)6 (.236)
PUSH-PULL AXLE
Mat: 4140 Steel (1) req’d.
FULL SIZE
49
(1.929)
36
(1.417)
25,4
(1.00)
R2(.0787)
6
(.236)
6 (.236)
42
(1.653)
2 deg.
13
(.512)
30
(1.181)
20.976
(.82583)
20989
(.82634)
6-32 UNF
100
(3.937)
2 Deg.
34
(1.338)
54
(2.126)
5 (.197)
PIVOT HEAD
Mat: 2024-T3 Aluminum
12 (.472) Thk.
(2)req’d
FULL SIZE
BUSHING A
Mat: Steel (2) req’d
FULL SIZE
19
(.748)
30
(1.181)
21,8 (.858)
15.020 (.5914)
12,5
(.492)
BUSHING B Mat: steel (2) req’d.
FULL SIZE
24 (.945)
15.250 (.600)
108
(4.252)
15.000
(.59056)
14.992
(.59024)
MAIN ROTOR AXLE
Mat: 8620 steel (1) Req’d
HEAT TREATMENT:
Case Hardening
Min. Surface Hardness:
58 Rockwell C
Efective case depth:
0,3 (.012)
After finish grinding
FULL SIZE
FURIA HELICOPTER -
Plans Delivery.com COPYRIGHT©2001 Osvaldo Durana 29
MAIN ROTOR COMPONENTS
15,020
(.5914)
29,980 (1.1803)
29,990 (1.1772)
BALL
Mat: 8620 Steel (1) req’d.
Heat Treatment: Case Hardening
58 Rockwell C
FULL SIZE
MAIN ROTOR SHAFT
25 Deg.
60.000
(2.362)
65.000
(2.55906)
64.987
(2.55855)
72.000
(2.835)
65.000
(2.55906)
64.987
(2.55855)
60.000
(2.362)
55
(2.165)
57
(2.244)
55
(2.165)
28
(1.102)
11
(.433)92
(3.622)13
(.512)
18
(.709)
15
(.591)
18
(.709)
20
(.787)
2(.0787)
215
(8.465)
SECTION
A-A
A
120
Deg.
Woodruff keyseats
54
(2.126)
30
deg.
R 2 (.0787)
A
R 2 (.0787)
R2 (.0787)
22.000
(.8666)
51
(2.007)
42
(1.654)
4 (.157)
7
(.275)
4 (.157)
51
(2.007)
Mat: 4140 Steel (1) req’d.
FULL SIZE
FURIA HELICOPTER -
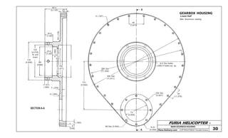
Plans Delivery.com COPYRIGHT©2001 Osvaldo Durana 30
MAIN GEARBOX HOUSING
69,4
(2.733) 20
(.787)
25,4
(1.00)
R3(.118)
25,4
(1.00)
15(.590)
4(.157)
118
(4.646)
102
(4.016)
To suit
mast
89
(3.504)
10
(.394)
78
(3.071)
12
7 (.276)
9 (.354)
9 (.354)
8
(.315)
A
72
(2.835)
89 Dia (3.504) R 51
(2.008)
100 Dia
(3.937)
35
(1.378)
151
(5.945)
300 Dia
(11.811)
288 Dia
(11.339)
5 (.197)
46
(1.811)
A
6,5 Dia Holes
(.256) 6 holes eq. sp.
GEARBOX HOUSING
Lower Half
Mat: Aluminum casting
SECTION A-A
FURIA HELICOPTER -
Plans Delivery.com COPYRIGHT©2001 Osvaldo Durana 31
MAIN GEARBOX HOUSING
15
(.590)
20 (.787)
2 Deg.
R3(.118)
10(.394)
122
(4.803)
114
(4.488)
78
(3.071)
89
(3.504)
6 (.236)
4(.157)
100.000
(3.93701)
100.035
(3.93839)
7(.276)
16 (.629”)
9(.354)
8(.315)
2 Deg.
5 (.197)
46
(1.811)
A
288 Dia
(11.339)
300 Dia
(11.811)
151
(5.945)
45 Deg.
100 Dia
(3.937) 35
(1.378)
72 Dia
(2.835)
89 Dia (3.504)
A
R 51
(2.008)
GEARBOX HOUSING
Upper half
Mat: Aluminum casting
100
(3.937)
89
(3.504)
45º
5 Dia
(.197)
8 holes Eq. Sp.
GEARBOX LID
Mat: Aluminun 4 (.157) Thk.
(1) Req’d.
FURIA HELICOPTER -
Plans Delivery.com COPYRIGHT©2001 Osvaldo Durana
15
(.590)
246
(9.7)
* 100
(3.94)
220
(8.66)
R 9
(.354)
5
(.197)
*) To fit in main rotor shaft
160
(6.30)
45
(1.77)
GEAR PINION
Full Size
CUTTING DATA
NUMBER OF TEETH
DIAMETRAL PITCH
PITCH DIAMETER
OUTSIDE DIAMETER
CENTERDISTANCE
ADDENDUM
DEDENDUM
CLEARANCE
WHOLE DEPTH
MAINROTORGEARS
GEAR
95
10
9.5
9.7
5.9
.1
.1157
.0157
.2157
PINION
23
10
2.3
2.5
5.9
.1
.1157
.0157
.2157
32
3(.118”)
3
(.118”)
Dia 25
(.984”)
15
(.590”) 25
(.984”)
37
(1.456”)
FURIA HELICOPTER -
Plans Delivery.com COPYRIGHT©2001 Osvaldo Durana 33
MAIN ROTOR GEARBOX / PINION HOUSING
PINION HOUSING
83
(3.268)
14
(.551)
2,4
(.094)
15
(.591)
36
(1.417)
16
(.630)
3 (.118)
65
(2.560)
52.000
(2.04724)
52.025
(2.04823)
55
(2.165)
45
(1.772)
52.000
(2.04724)
52.025
(2.04823)
71.975
(2.83366)
Chamfer
R 4 (.157)
7
(.276)
100 Dia
(3.937)
A
SECTION A-A
89
(3.504)
45 Deg.
A
5 Dia (.197) 8 holes
eq. sp.
Mat: Aluminum (1) req’d.
FULL SIZE
FURIA HELICOPTER -
Plans Delivery.com COPYRIGHT©2001 Osvaldo Durana 34
MAIN ROTOR MAST
FW
D
Holes for gearbox attachment ring
56
(2.205)
75
(2.953)
50
(1.968)
22
(.866)
38
(1.496)
1310
(51.575)
Holes for belcranck mounting ring
MAIN ROTOR MAST
Mat.: 6061-T6 Aluminum Tube
O.D. 400 (101.6)
I.D. 97 (3.819) (Approx.)
101,6
(4.00)
To match mast tube I.D.
10
(.394)
1/4”-28
UNF
89
(3.504)
97
(3.819)
To suit mast tube I.D.
25,4
(1.00)
3(.118)
A
A
60 Deg.
6 Holes eq. sp.
GEARBOX
ATTACHMENT RING
Mat: 4130 Steel
FULL SIZE
FURIA HELICOPTER -
Plans Delivery.com COPYRIGHT©2001 Osvaldo Durana 35
CONTROL SYSTEM
10
(.394)
32,90
(1.2953)
A
A
26,50
(1.043)
Spherical
Radius
15 (.591)
5
(.039)
SECTION A-A
7(.276)
1-3/8”-12
UNF
*15(.591)
*Spherical Radius
B
B
28
(1.102)
32,5
(1.280)
11
(.433)
(.157) 4
3(.118)
5
(.197)
SECTION B-B
7/8”-14
UNF
9
(.354)
3 (.118)
17
(.669)
3(.118)
20,5
(.807)
D
DSECTION D-D
5 (.197)
Spherical
Radius 15
(.591)
18
(.709)
22.000
(.86614)
22.021
(.86697)
C
C3 (.118)
15,5
(.610)
7/8”-14
UNF
SECTION A-A
39.00
(1.535)
33.00
(1.299)
10
(.394)
1-3/8”-12 UNF 25
(.984)
12 (.472)
60
(2.362)
2,5
(.098)
4,75
(.187)
23
(.906)8
(.315)
16
(.634)
To fit in central Push-Pull tube
(collective)
RACE/NUT Mat: 1050 Steel (1) req’d
BALL RACE
BALL/BEARING HOUSING
NUT A
CENTRAL UNIBALL
HOUSING
Mat: 1050 Steel (1) req’d
Mat: 1050 Steel (1) req’d
Mat. 1045 Steel (1) req’d
Mat.: 1045 Steel (1) req’d
HEAT TREATMENT
Ball and races must have hardened
surfaces (raceways)
Minimun surface hardness:
58 Rockwell C
FULL SIZE
FULL SIZE
FULL SIZE
FULL SIZE
FULL SIZE
FURIA HELICOPTER -
Plans Delivery.com COPYRIGHT©2001 Osvaldo Durana 36
CONTROL SYSTEM
25
(.984)
40
(1.575)
60
(.827)
6
(.236)17
(.669)
R 8
(.315)
6,35 Dia
(.250)
3 holes
6(.236)
40
(1.575)
52
(2.047)
R 13
(.512)
21 (.827)
R2,5(.098)
20
(.787)
12
(.472)
10
(.394)
16
(.630)
6,35 (.250)
12
(.472)
3(.118)
14
(.551)
E
E
5/16”-24
UNF
SECTION E-E
22 (.866)
6 (.236)
R 6 (.236)
R2,5(.098)
R 6
(.236)
6,35
(.250)
10 (.394)
22
(.866)
53
(2.087)
16
(.634)
To suit
Push-Pull
tube
(collective)
R 16
(.630)
19 (.748)
10-32 UNF
R 9,5
(.374)
CYCLIC/COLLECTIVE Central Link
Mat: 2024-T3 Aluminum (1) Req’d
CYCLIC UPPER BELLCRANK
NUT B
Mat: 2024-T3 Aluminum (2) req’d
Mat: 1045 Steel(1) req’d
FULL SIZE
FULL SIZE
FULL SIZE
FULL SIZE
BUSHING -SPACER
Mat: 2024-T3 Aluminum (4) Req’d
FURIA HELICOPTER -
Plans Delivery.com COPYRIGHT©2001 Osvaldo Durana
157
(6.18)
63
(2.48)
44
(1.732)
12
(.472)
50
(1.97)
5 (.197)
19 Dia
(.748)
7,9
(.312)
97
(3.82)
48
(1.89) Nut
AN316-4L
Nut
AN316-4R
Rod End
HMVV-4
Rod End
HMLVV-4
51
(2.00)
2 (.08) 22
(.866)
2 (.08) 25
(.984)
12,7
(1/2”)
1/4”-28
UNF
22,2
(3/4”)
10
(.394)
8
(.315)
23
(.905)
16,32 (.6426)
Dia to fit in
Aluminum tubes
10 (.394)
5
(.197)
8
(.315)
Lenght to suit
approx. 1300 (51.18)
19
(3/4”)
AN316-4R Rod End HMVV-4
8 (.315)
15 (.590)
44 (1.732)
5(.197)
13
(.512)
BLADE CONTROL LINKAGE Mat: 2024-T3 Aluminum (2) req’d
CENTRAL PUSH-PULL TUBE Mat: 4130 steel tube (1)req’d
BLADE DRAG BRACE
CONTROL SYSTEM
37
Mat: Steel Quantity: 2 of each
FRONT VIEW
SIDE VIEW
DRAG BRACE BUSHING
Mat: 2024-T3 aluminum (2) req’d
PUSH-PULL TUBES THREADED ENDS
Mat: 2024-T3 or
6061-T6 aluminum
(7)req’d
make 4 right threaded
and 3 left threaded
FULL SIZE
FULL SIZE
FULL SIZE
FULL SIZE
FURIA HELICOPTER -
Plans Delivery.com COPYRIGHT©2001 Osvaldo Durana
59
(2.32)
5/16”-24 UNF
7/16”-20
UNF64 Dia
(2.52)
FWD
R 41
(1.614)
60º
6 holes
eq. sp.
1/4”-28
UNF
40
(1.58)
97
(3.82)
25
(.98)
3(.118)
102
(4.00)
To match mast tube O.D
73
(2.874)
R 9
(.354)
4 (.157)
18 (.709)
4 (.157)
6,35 Dia
(.250)
64
(2.52)
R 12,5
(.49)
30
(1.18)
10
(.394)
R 12,5
(.492)
35
(1.378)
67
(2.638)
16 (.629)
16 (.629)
6,35
(.250)
6 holes
R 9
(.354)
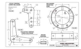
CYCLIC CONTROL
LOWER BELLCRANK
COLLECTIVE CONTROL
LOWER BELLCRANK
BELLCRANKS
MOUNTING
RING
SPACER
BUSHING
Mat: 2024-T3 aluminum
5 (.197) Thk.
(1)req’d
Mat: 2024-T3 Aluminum 5 (.197) Thk (1) req’d
Mat: steel or brass (1)req’d
24
(.945)
12,7
(1/2”)
6,35 (.250)
18
(.709)
Mat: aluminum (1) req’d
CONTROL SYSTEM
38
FULL SIZE
FULL SIZE
FULL SIZE
FULL SIZE
FURIA HELICOPTER -
Plans Delivery.com COPYRIGHT©2001 Osvaldo Durana
34
(1.34)
8 (.315)
15
(.590)
15
(.590)
88
(.3.46)
154
(6.06)
20 (.787)
5 Dia (.197)
R 6,35 (.250)
R 9
(.35)
15
(.590)
6,35
(.250)
CONTROL SYSTEM
39
CYCLIC CONTROL
PUSH-PULL TUBES
CENTRAL BRACKET
Rod ends
HMVV-4
Nut
AN316-4R
1040
(40.945)
1140
(44.882)
Nut
AN316-4L
Rod end
HMLVV-4
Mat: 6061-T6 aluminum tubes
19 Dia (3/4”) 1,5 (.058) wall thk
(1) of each req’d
Threaded ends :(see page # 36)
1070 (42.126)
1170 (46.063)
A
B
Nut
AN316-4R
Nut
AN316-4L
Rod end
HMLVV-4
Mat: 4130 steel 2 (0.80) thk
(1) req’d
FULL SIZE
FULL SIZE
FURIA HELICOPTER -
Plans Delivery.com COPYRIGHT©2001 Osvaldo Durana
36
(1.42)
19
(.748)
15
(.590)
8(.315)
50
(1.97)
96
(3.78)
232
(9.13)
68
(2.68)
5 (.187)
15 (.590)
30
(1.181)
48
(1.89) 65
(.2.56)
R 1,5
(.05)
9
(.354)
140
(5.51)
To match
main gearbox
8
(.311)
R 228
(8.97)
MAINGEARBOXBRACKET
40
FULL SIZE
FULL SIZE
MAIN GEARBOX
FRONT BRACKET
Mat: 4130 Steel
2 (.080) thk.
(2) req’d
5 (.197)
21
(.827)
8
(.315)
36
(1.42)
6,35 (.250)
34
(1.338)
6,35
(.250)
R 10
(.394)
BELLCRANK BRACKET
Mat: 2024-T3 Aluminum
11 (.433) Thk
(2) req’d
FURIA HELICOPTER -
Plans Delivery.com COPYRIGHT©2001 Osvaldo Durana
7/16”-20
UNF
10-32
UNF
9
(.354)
8
(.315)
20 (.787)
R
6,35 (.250) 5 holes Eq. Sp.
98
(3.86)
7 (.276)
20 (.787)
R
10
(.394)
28,3
(1.118)
To fit inside torque tube end (A)
10-32
UNF
R 18
(.708)
12,7 (.5) 5 (.197)
15
(.590)
63
(2.48) 610
(24.02)
32
(1-1/4”)
A
14
(.551)
3 (.118)
6 (.236)
44
(1.73)
37.9
(1.492)
32,3
(1.27)
37,5
(1.46)
38,2
(1.51)
5
(.197)
CONTROL SYSTEM
41
FULL SIZE
FULL SIZE
FULL SIZE
FULL SIZE5 (.197)
12,7 (.5)
28,3 (1.118)
To fit inside
Torque Tube
63
(2.48)
15
(.590)
101,6
(4.00)
INNER REINFORCEMENT TUBE
TORQUE TUBE
LEVER
SPACER
Mat: Aluminum (1) req’d
8
(.315)
16
(.630)
20
(.787)
6,35(.250)
16
(.630)
FULL SIZE
NYLON BUSHING
Press to install
(1)req’d
Mat: 2024-T3 or 6063-T6 aluminum
(1) req’d
Mat: 6061-T6 Aluminum 1,6 (.065) wall thk. (1) req’d.
Mat: 4130 Steel 2,10 (.083) wall thk (1) req’d
FURIA HELICOPTER -
Plans Delivery.com COPYRIGHT©2001 Osvaldo Durana
MAINGEARBOXBRACKET
42
232
(9.13)
70
(2.75)
80
(3.15)
18
(1.69)
10
(.393)
24
(.944)
43
(1.69)
5 (.187)
40
(1.57)
94
(3.70)
15
(.197)
190
(7.48)
205
(8.07)
R 7 (.27)
5 (.197)
MAIN GEARBOX REAR
BRACKET
Mat: 4130 Steel 2 (0.80) Thk
(1)req’d
FURIA HELICOPTER -
Plans Delivery.com COPYRIGHT©2001 Osvaldo Durana
4,75
(.187)
Thru
40º
14
(.551)
48
(1.89) 84
(3.307)
110º
3,25
(.128)
6,35
(.250)
54
(2.126)
R 8,5
(.335)
16
(.630)
2 (.08)
Thk
17 (.669)
21
(.827)
63
(2.480)
A B 28,6 (1-1/8”)
2,4 (.095)
Wall Thk
I.D. to fit
control stick
25,4
(1.00)
8
(.315)
6
(.236)
12
(.472)
5(.187)
36
(1.42)
50
(1.97)
50
(1.97)
36
(1.42)
8
(.315)
R
5
(.197)
38
(1.50)
37
(1.46)
70
(2.76)
R 25
(.984)
CONTROL SYSTEM
43
CYCLIC CONTROL STICK HOLDER
FULL SIZE
FULL SIZE
LATERAL STOP
TORQUE TUBE
BRACKET
Mat: 4130 Steel (1) req’d
Mat: 4130 Steel
2 (.08) Thk
Mat: 2024-T3 aluminum 5 (.197)
(1) req’d
FURIA HELICOPTER -
Plans Delivery.com COPYRIGHT©2001 Osvaldo Durana
36
(1.42)
3 (.118)
10
(.394)
I.D. To slide
Torque Tube
In
6,35
(.250)
Thru
Stiffener
2 (.08)
49
(1.929)
3,5
(.138)
R 7
(.275)
130º
50
(1.970)
5 (.197)
471 (18.54)
573 (22.56)
Rivets
Rod End
HMLVV-4
Nut AN316-4R Rod End
HMVV-4
Nut AN316-4L
6061-T6 Aluminum Tube 22,2 (3/4”) 1,50 (.058) Wall Thk. (1) req’d
9
(.354)
12,7 (1/2”) 12,7 (1/2”)
28,6
(1-1/8”)
3 (.118)
Dia to suit
stick holder
A
14
(.551)
1,45 (.05)
Chamfer
23
(.905)
8
(.315) B
14
(.551)
Cotter Pin holes
3,175 (1/8”)
130
(5.12)
45
(1.77)
8
(.315)
5-44
UNF
CONTROL SYSTEM
44
FULL SIZE
FULL SIZE
FULL SIZE
FULL SIZE
CYCLIC CONTROL PUSH-PULL TUBE
TRAVEL LIMITING STOP
LIMITING BAR
STICK HOLDER CAPS
Mat: 4130 Steel (.095) Wall Thk (1) Req’d
Mat: Steel (1) req’d
Mat:Aluminum (1) of each req’d
FURIA HELICOPTER -
Plans Delivery.com COPYRIGHT©2001 Osvaldo Durana
30
(1.18)
15
(.590)
5
(.197)
10
(.393)
40
(1.57)
72
(2.83)
97
(3.82)
87
(3.42)
16
(.63)
34
(1.34)
7
(.275)
40
(1.57)
76
(2.99)
R 9
(.35)
6,35 Dia
(.250)
40º
134
(5.28)
Weld
178
(7.00)
40º
98
(3.86)
24
(.945)
22
(.866)
5 (.197) Thru
CONTROL SYSTEM
45
FULL SIZE
FULL SIZE
CYCLIC CONTROL STICK
Mat: 4130 Steel (1) Req’d
22,2 (7/8”) O.D. 1,65 (.065) Wall Thk (1) Req’d
THROTTLE LEVER
Mat: 4130 Steel (1) Req’d
62
(2.44)
R 9,5
(.375)
6,35
(.250)
28 (1.10)
3 (.118)
9,5 (.38)
3 (.118) Hole thru
9,75 (.384)
12,7 (.5)
16
(.630)
2 (.080)
UPPER CYCLIC BELLCRANKS
MOUNTING BRACKET
BENDINGLINE
Mat: 4130 Steel - 2 (.080) Thk
(2) req’d (left and right)
FURIA HELICOPTER -
Plans Delivery.com COPYRIGHT©2001 Osvaldo Durana
CONTROL SYSTEM
46
FULL SIZE
FULL SIZE
15
(.590)
12 (.472)
95º
45
(1.77)1/4”-28 UNF
20,2
(.795)
152
(5.98)
6,35 (.250)
5 (.197)
3 (.118)
hole thru
568
(22.36)
DETAIL A
THREADED END
95º
6,35 (.250)
R 9,5
(.375)
R 15 (.590) COLLECTIVE LEVER
NYLON BUSHINGS
5 (.197)
5 (.197)
10 (.394)
20,2
(.795)
24 (.945)
9,75 (.380)
32 (1.26)
22,4 (.882)
10
(.394) 10
(.394)
29,8
(1.173)
22,4
(.882)
15
(.590)
29,8
(1.173)
4 (.157)
(1) of each req’d
Weld
280
(11.0)
500
(19.68)
22.2 (7/8”) O.D.
(.035) Wall Thk
31,7 (1-1/4”) O.D.
(.035) Wall Thk
A HANDLE THROTTLE CONTROL
COLLECTIVE CONTROL STICK
Mat: 4130 Steel tubing (1) req’d
Mat: 4130 2(.080) Thk
10 (.394) Thk
4130 Steel Tube9,5 (.375)
0,8 (.035) Thk
FURIA HELICOPTER -
Plans Delivery.com COPYRIGHT©2001 Osvaldo Durana
Note:
All tubes must have a inner aluminum bar at
the root - Lenght: 150 (5.905)
2680
(105.512)
25 (.984)
110
(4.331)
16 (.630)
15 (.590)
26 (1.024)
Soft Rivets
A B LEADING EDGE
Tip Cover
20
(.787)
BA TRAILING EDGE
MAIN ROTOR BLADE
47
SEE SECTIONS A-A and B-B on
page # 47
MAIN ROTOR BLATE TOP VIEW
FURIA HELICOPTER -
Plans Delivery.com COPYRIGHT©2001 Osvaldo Durana
SECTION A-A
6º
Blade root reinforcement plates
Blade seat
Reinforcements
(upper and inner)
Lower Steel plate
Steelbushing
SECTION B-B
4130 Steel tube
2024-T3 Aluminum bars
6061-T6 Aluminum tubes
MAIN ROTOR BLADE
48
FULL SIZE
FULL SIZE
FULL SIZE
MAIN ROTOR BLADE CROSS SECTIONS Dia 7,5
(.295)
153
(6.024)
27º
11
(.433)
8º
MAIN BLADE SKIN SECTION
Mat: 2024-T3 Aluminum 0,5 (.020) Thk
Lenght: 2680 (105.51) (2) Req’d
Bend the aluminum sheet to comform this shape
FURIA HELICOPTER -
Plans Delivery.com COPYRIGHT©2001 Osvaldo Durana
5
(.197) 12
(.472)
4
(.157)
70
(2.756)
35
(1.378)
25,4
(1.00) 145
(5.709)
16
(.630)
11
(.433)
5(.197)
20
(.787)
35
(1.378)
50
(1.968)
MAIN ROTOR BLADE
49
FULL SIZE
FULL SIZE
FULL SIZE
12
(472)
25,4
(1.00)
23
(.905)
STEEL BUSHING BLADE ROOT REINFORCEMENT PLATE
Mat: 2024-T3 Aluminum 5 (.197) Thk (8) req’d
INNER REINFORCEMENT
Mat: 4130 Steel 1,27 (.050) Thk (2) Req’d
12
(.472)
13
(.512)
660
(25.984)
4 (.157)
2
(.0787)
20
(.787)
13
(.512)
INNER REINFORCEMENT
Mat: 2024-T3 Aluminum 1,27 (.050) Thk (2) Req’d
13
(.512)
640
(25.197)
20
(.787)
FURIA HELICOPTER -
Plans Delivery.com COPYRIGHT©2001 Osvaldo Durana
MAIN ROTOR BLADE
50
FULL SIZE
FULL SIZE
LOWER BLADE PLATE UPPER
REINFORCEMENT
4
(.157)
16
(.630)
16
(.630)
5 (.197)
20
(.787)
35
(1.378)
50
(1.968)
150
(5.905)
6 (.236)
18
(.709)
150
(5.905)
8
(.3125)
8(.3125)
8
(.3125)
12
(.472)
22
(.866)
13
(.512)
81
(3.189)
150
(5.905)
27
(1.063)
Mat: 4130 Steel 2 (.080) Thk (2) Req’d
Mat: 4130 Steel 2 (.080) Thk
(2) Req’d
FURIA HELICOPTER -
Plans Delivery.com COPYRIGHT©2001 Osvaldo Durana
MAIN ROTOR BLADE DETAILS
51
BLADE ROOT
BLADE TIP DETAIL
BLADE ROOT DETAIL
BLADE TIP
Outer Skin
Counterweight
Screws
Tip Cover
6º
Twist
Inner reinforcement (steel)
(between outer skins)
Inner reinforcement (aluminum)
(Between outer skins)
Leading Edge
Trailing Edge
Inner Aluminum Bar
Steel Tube
Aluminum Bars
Aluminum Tubes
Skin
Steel Rivets
Upper Reinforcement
Inner Reinforcement
(Steel)
Lower Blade Plate
Root
Reinforcement
Plates
OSVALDO DURANA
OSVALDO DURANA
OSVALDO DURANA
FURIA HELICOPTER -
Plans Delivery.com COPYRIGHT©2001 Osvaldo Durana
MAIN ROTOR BLADE CONSTRUCTION
52
MAIN ROTOR BLADE
CONSTRUCTION
A) Setting wood jigs, check alignment and determine jigs #1 and #2.
You can add wood stringers between the jigs to make the assembly stronger.
B) Mount the tubes and bars over the jig so you can rivet them together, Check
that tubes follow the twist. (6º)
C) After cutting the tubes to allow fit counterweight at the tip (see page # 50).
D) Remove the pack of tubes and bars from the jig and place the prebend
aluminum skin (page # 47) over the jig, now you can place the pack of tubes
and bars inside the open skin.
E) Close the skin and start riveting the trailing edge, don’t forget to include the
inner reinforcement strips between the skins.
F) use soft rivets to hold skins and tubes.
G) Finish root and tip sections, placing reinforcement plates and tip cover.
C
B
A
Blades must be balanced
0º Wood Jig
6º Wood Jig
OSVALDODURANA
FURIA HELICOPTER -
Plans Delivery.com COPYRIGHT©2001 Osvaldo Durana
MAIN ROTOR BLADE
53
FULL SIZE
FULL SIZE
FULL SIZE
BLADE TIP
6º
wood jig
Cut and glue to 1/4” or 1/2”
Plywood
BLADE TIP COVER
Mat: 2024-T-3 aluminum 5 (.197) Thk (2) req’d
(Shape to suit airfoil)
3,7 (.146)
FULLSIZE
0º
woodjig
Cutandglueto1/4”or1/2”
Plywood
BLADEROOT
COUNTERWEIGHT
Mat: lead (2) Req’d
55
(2.165)
6-32 UNF
30
(1.181)
Center holes according aluminum bar centers
Shape to suit airfoil
FURIA HELICOPTER -
Plans Delivery.com COPYRIGHT©2001 Osvaldo Durana
TAIL ROTOR
54
FULL SIZE
FULL SIZE
FULL SIZE
FULL SIZE
112,5
(4.430)
60
(2.363)
17
(.670)
31
(1.220)
61
(2.40)
8,5 (.335)
24,5
(.965)
11 (.433)
7 (.276
15,5
(.611)
8 (.315)
12,7 (.500)
98,5
(3.878)
R 2
(.0787)
6,35
(.250)
61
(2.402)
Dia 4 (.157)
Rods are installed with the aid of a
press
BE CAREFULL: do not bend rods
Mat: Steel
PITCH CONTROL HEAD
Mat: 2024-T3 Aluminum
(1) Req’d
9,5 (.374)
13,5
(.532)
1-3/8”-12 UNF
2
(.0787)32.000
32.025
(1.25985)
(1.26083)
9
(.354)
20,6
(.811)
R2(.0787)
BLADE GRIP NUT Mat: 4130 Steel (2) Req’d
STEEL PIN PITCH CONTROL LINKAGE
20
(.787)
(2) Req’d Mat: 1/2” hex aluminum bar (2) Req’d
Chamfer
6,36 (.250)
26
(1.024)
2
(.0787)
23,5
(.925)
10(.394)
4 (.157)
1/4”-28 UNF
1/4”-28
UNF-LH
FURIA HELICOPTER -
Plans Delivery.com COPYRIGHT©2001 Osvaldo Durana
TAIL ROTOR
55FULL SIZE
FULL SIZE
FULL SIZE
73
(2.874)
27
(1.063)
33
(1.299)
7,5
(.295)
43
(1.693)
6,35 (.250)
68
(2.677)
15 (.590) Spotface
to cleanA
31
(1.220)
57
(2.244)
9,5
(.374)
R 2 (.0787)
48
(1.889)
A
6
(.236)
56
(2.205)
4,75 (.187) 6
Holes Eq. Sp.
25(.984)
* 30.000
30.021
(1.18111)
(1.18193)
13
(.512)
1-3/8”-12
UNF28
(1.102)
16
(.630)
22,5
(.886)
2
(.0787)
6
(.236)
33
(1.300)
83
(3.268)
4,75 (.187) 6 Holes Eq. Sp.
9
(.354)
56
(2.205)
35
(1.378)
6(.236)
41
(1.614)
68 Dia (2.687)
TAIL BLADE GRIP
PITCH CONTROL HORN
Mat: 6061-T6 or 2024-T3 Aluminum (2) Req’d
Mat: 2024-T3 Aluminum 4 (.157) Thk (2) Req’d
AXLE NUT
Mat: Steel (2) Req’d
5/8”-18 UNF
6,5
(.256)
25,4
(1.00)
23
(.905)
22
(.866)
R 2,5
(.098)
6,35
(.250)
FURIA HELICOPTER -
Plans Delivery.com COPYRIGHT©2001 Osvaldo Durana
TAIL ROTOR
56
FULL SIZE
FULL SIZE
4,5
(.177)
21
(.827)
19
(.748)
4º
5
(.197)
6
(.236)
R 2 (.0787)
11
(.433)
R
16,5
(.629)
30.000
29.975
(1.18111)
(1.18012)
A A
Keyway 3,5 x 2 (.138 x .0787)
27
(1.063)
25
(.984)
4 (.157)
35
(1.378)
28,5
(1.122)
16º
16º
14,5
(.571)
40º
5 (.197)
3 (.118)
TAIL ROTOR HUB
SECTION A-A
ENLARGED
RETAINER NUT
TAIL ROTOR HUB
(1) Req’d
Mat: 2024-T3 Aluminum with Bronze
inserts (tapered bushings)
Use anaerobic adhesive to fix bush-
ings in place (Loctite® )
Mat: Steel (1) Req’d
A A
21
(.827)
15,5
(.610)
4(.157)
15
(.590)
5 (.197)
SECTION A-A ENLARGED
2,5 (.098)
2 (.0787) Hole for safety wire
9/16”-18 UNF
Chamfer
9
(.354)
2(.0787)
2 (.0787)
4
(.157)
R 1.75
(.0689)
11
(.433)
AXLE PIVOT SCREWS AND NUTS
(ENLARGED)
Mat: Steel (2) Req’d
FASTEN SCREWS WITH ADHESIVE (Loctite)
5,5
(.217)
6
(.236)
19 (.709)
6,5(.256)
5/16”-24
UNF
5
(.197)
FURIA HELICOPTER -
Plans Delivery.com COPYRIGHT©2001 Osvaldo Durana
TAIL ROTOR
57
FULL SIZE
FULL SIZE
FULL SIZE
124,5
(4.902)
43
(1.693)
8,5(.335)
13(.512)
10(.394)
6(.236)
6(.236)
8,5(.335)
13(.512)
10(.394)
6(.236)
6(.236)
43
(1.693)
38,5
(1.516)
A
A
45º
18
(.709)
30.000
30.021
(1.8111)
(1.8193) 41,5
(1.634)
SECTION A-A
Holes for Pivot screws
5/16”-24 UNF
10.000
9.994
(.39370)
(.39347)
12(.472)
16.000
15.992
(.62992)
(.62961)
18
(.709)
4º
5/8”-18 UNF on both ends
AXLE
Mat: 4140 Steel (1) Req’d
4,25
(.167)
8,5
(.334)
16,5
(.649)
61
(2.402)
19,5
(.768)
45º
Hole for pin
2
(.0787)
CONTROL HEAD GUIDE
Mat: Steel 2 (.0787) Thk (1) Req’d
PITCH-CONTROL AXLE
70
(2.756)
11
(.433)
11
(.433)
10
(.394)
8
(.315)
1/4”-28
UNF
317 (12.480)
7 (.275)
35
(1.378)
23
(.905)
11
(.433)
11
(.433)
1/4”-28
UNF
6,35 (.250)
8 (.315)
Mat: Steel (1) Req’d
Once installed properly over the hub, make
the 2 mm (.0787) hole on Tail Rotor Hub and
place a Pin ( See tail Rotor Exploded view
Page # 11
FURIA HELICOPTER -
Plans Delivery.com COPYRIGHT©2001 Osvaldo Durana
TAIL ROTOR GEARBOX CAP
FULL SIZE
TAIL ROTOR GEARBOX REAR CAP
A
10-32 UNF
8 Holes Eq. Sp.
6,35 (.250)
4 Holes Eq. Sp.
64
(2.520)
A
101,6
(4.00) To match Tail Boom O.D.
20 (.787)
6 (.236)
97(3.819)
To suit
Tail Boom I.D.
50(1.968)
42.000
42.025
(1.6535)
(1.6545)
54,85
(2.160)
8(.315)
28,5
(1.123)
8(.315)
13
(.512)
42.000
42.025
(1.6535)
(1.6545)
50
(1.968)
55
(2.165)
6 (.236)
14
(.551)
6
(.236)
2(.0787)
5 (.197)59
(2.323)
SECTION A-A
Mat: Aluminum (2) Req’d
58
FURIA HELICOPTER -
Plans Delivery.com COPYRIGHT©2001 Osvaldo Durana
TAILROTOR GEARS
59
FULL SIZE
FULL SIZE
FULL SIZE
FULL SIZE
SPLINED END
16(.630)
3/4”-16
UNF
20.000
19.991
(.78740)
(.78705)
24(.945)
72
(2.835)
19
(.748)
18
(.709)
4
(.157)
11
(.433)
97
(3.819)
19
(.748)
Diameter *
*To suit Pitch-Control Axle (must slide freely)
9/16”-18
UNF - Left Hand
15,8
(.625)
21
(.827)
42
(1.653)
25.000
24.991
(.98425)
(.98389)
22(.866)
R 11
(.433)
17
(.669)
14,5(.571)
18,5
(.728) 16,4
(.646)
9/16”-18
UNF
keyseat
Cone must
match Tail
Rotor Hub
R 4 (.157) 19
(.748)
6 (.236)
97
(3.819)
106
(4.173)
211
(8.307)
8
(.315)
69
(2.716)
74
(2.913) 84
(3.307)
TAIL ROTOR GEARS
NUMBER OF TEETH
DIAMETRAL PITCH
PRESSURE ANGLE
PITCH DIAMETER
ADDENDUM
WHOLE DEEPTH
CIRCULAR THICKNESS
SHAFT ANGLE
DEDENDUM
CLEARANCE
PINION
18
12
20º
1.5
.0833
.18433
.1309
90º
.10103
.01773
GEAR
34
12
20º
2.833
.0833
.18433
.1309
90º
.10103
.01773
GEARS CUTTING DATA
NUT C
Mat: Steel (1) Req’d
20
(.787)
11
(.433)
7 (.275)
16 (.630)
9/16”-18 UNF
Left HandNUT D
Mat: Steel (2) Req’d
28
(1.102)
R 2 (.0787)
22
(.866)
3/4”-16
UNF
30
(1.181)
3 (.118)
14
(.551)
Gear
2 req’d
FURIA HELICOPTER -
Plans Delivery.com COPYRIGHT©2001 Osvaldo Durana
TAIL ROTOR GEARBOX
60
FULL SIZE
55 (2.165)
50 (1.968)
6 (.236)
4 (.157)
2 (.0787)
2 (.0787)
3 (.118)
4 (.157)
40
(1.575)
10
(.394)
10-32
UNF
Dia 54
(2.125)
Recess to suit Bearing Cover
(Small)
See
Note A
35.000
35.025
(1.3779)
(1.3789)
Note A:
Diameter
30
(1.181)
40
(1.575)
10
(.394)
10-32 UNF
45
(1.772)
See
Note B
Note B
Diameter
47.000
47.025
(1.85040)
(1.85138)
Dia. 66 (2.598)
Recess to suit Bearing Cover
1/4”-28 UNF
4 Holes Eq. Sp.
10-32 UNF
6 Holes Eq. Sp.
A
64
(2.520)
2 (.0787)
A
O.D.Axis
I.D.Axis
73
(2.874)
95
(3.740)
Dia 90
(3.543)
SECTION A-A
TAIL ROTOR GEARBOX
Mat: Aluminum (2) Req’d
4 (.157)
7 (.275)
FURIA HELICOPTER -
Plans Delivery.com COPYRIGHT©2001 Osvaldo Durana
TAIL ROTOR GEARBOX
61
FULL SIZE
FULL SIZE
FULL SIZE
FULL SIZE
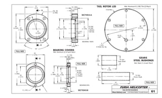
TAIL ROTOR LID
Chamfer
95
(3.740)
90
(3.543)
20
(.787)10-32
UNF
5
(.197)
6 Holes Eq. Sp.
Mat: Aluminum 6 (.236) Thk (2) Req’d
GEARS
STEEL BUSHINGS
Mat: Steel (1) of each Req’d
To Suit
Gear Shaft
To Suit
Pinion Shaft
22
(.866)
33
(1.30)
61
(2.401)
18
(.709)
BEARING COVERS
Mat: Aluminum (2) of each Req’d
43
(1.693)
64
(2.520)
51
(2.0)
A Dia. 66
(2.598)
57
(2.244)
A
75º
15 (.590)
2 (.0787)
47.000
47.025
(1.85040)
(1.85138)
35
(1.378)
40
(1.575)
45
(1.772)
2 (.0787)
4 (.157)
7
(.276)
B
B
40
(1.575)
36
(1.417)
47
(1.850)
5 (.197) SECTION B-B
SECTION A-A
30
(1.181)36
(1.417)
38
(1.496)
35.000
35.025
(1.37796)
(1.37894)
4 (.157)
2 (.0787)
9
(.354)
2 (.0787)
3 (.118)
BEARING EE5
BEARING 16005
FURIA HELICOPTER -
Plans Delivery.com COPYRIGHT©2001 Osvaldo Durana
TAIL BOOM SHAFT
62
FULL SIZE
FULL SIZE
FULL SIZE
RETAINING WASHER
INTERNAL BRACKET
SHAFT
A
A
SECTION
A-A
80
(3.150)
55
(2.165)
Dia 90
(3.543)
5
(.197)
Mat: Aluminum 0,8 (.032) Thk (3) Req’d
Dia 124
(4.88)
Dia 144
(5.669)
21
(.827)
55
(2.165)
Dia 96,5
(3.799)
80
(3.150)
70
(2.756)
R 0,5
(.020)
BENDING LINES
BEND
5
(.197)
15º
120º
5
(.197)
Mat: 2024-T3 Aluminum 1 (.040) Thk
(3) Req’d
Mat: 6061-T6 Aluminum O.D. 1-1/2” (.080) Wall Thk (1) Req’d
27
(1.063)
40
(1.575)
2995
(117.913)
27
(1.063)
40
(1.575)
6,35
(.250)Holes to match Shaft End
See page # 62
Holes to match Shaft End
FURIA HELICOPTER -
Plans Delivery.com COPYRIGHT©2001 Osvaldo Durana
TAIL BOOM
63
FULL SIZE
FULL SIZE
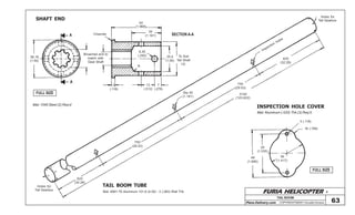
SHAFT END
TAIL BOOM TUBE
INSPECTION HOLE COVER
A
A
38,18
(1.50)
Broached end to
match with
Gear Shaft
SECTION A-AChamfer
50
(1.968)
30
(1.181)
6,35
(.250) 25,4
(1.00)
To Suit
Tail Shaft
I.D.
7
(.276)
13
(.512)
3
(.118)
R
Mat: 1045 Steel (2) Req’d
Mat: Aluminum (.020) Thk (3) Req’d
3 (.118)
18 (.709)
36
(1.417)
39
(1.535)
48
(1.890)
Holes for
Tail Gearbox
Inspection
holes
820
(32.28)
750
(29.53)
3140
(123.622)
Dia 30
(1.181)
750
(29.53)
820
(32.28)
Holes for
Tail Gearbox
Mat: 6061-T6 Aluminum 101,6 (4.00) - 2 (.083) Wall Thk
FURIA HELICOPTER -
Plans Delivery.com COPYRIGHT©2001 Osvaldo Durana
TAIL BOOM
64
FULL SIZE
FULL SIZE
BUSHING
RACEWAY
FULL SIZEA
A
68
(2.677)
50
(1.968)
Chamfer
20
(.787)
4 (.157)
R 1
(.040)
42,5
(1.673)
Mat: Black Grillon (with Molikote) (3) Req’d
SECTION A-A
25,4
(1.00)
38,2
(1.504)
To suit Tail Boom
Shaft O.D.
42
(1.654)
Mat: 8620 Steel (3) Req’d
HEAT TREATMENT
CASE HARDENING
Min Surface Hardness
58 Rockwell C
Efective Case Depth
0,3 (.012)
(After Finish Grinding)
70
(2.756)
25,4 (1.00)
20 (.787)
6,35 (.250)
4,75
(.187)
26
(1.024)
16
(.630)
20
(.787)
3(.118)
13
(.512)
CONTROL PULLEY ASSY
Dia 13
(.512)
Steel
Control
Cable
4
(.157)
6
(.236)
CONTROL PULLEY
Mat: 2024-T3 Aluminum (1) Req’d
OSVALDO DURANA
FURIA HELICOPTER -
Plans Delivery.com COPYRIGHT©2001 Osvaldo Durana
TAIL ROTOR CONTROL
65
FULL SIZE
FULL SIZE
FULL SIZE
FULL SIZE
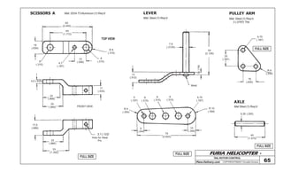
SCISSORS A LEVER PULLEY ARM
AXLE
Mat: 2024-T3 Aluminum (1) Req’d
62
(2.440)
45
(1.772)
16
(.630)
R 8
(.315)
8
(.315)
15
(.590)8
(.315)
4,7
(.187)
FRONT VIEW
TOP VIEW
4,5 (.630)
22
(.866)
25
(.984)
11
(.433)
3,1 (.122)
Hole for Steel
Pin
17,5
(.689)
25
(.866)
33
(1.300)
Mat: Steel (1) Req’d
54
(2.126)
7,9
(.3125)
3(.118)
Weld
13
(.512)
75
(2.953)
9
(.354)
R 10
(.394)
10
(.394)
R 9
(.354)
5
(.197)
8
(.315)
8
(.315)
8
(.315)
4,75
(.187)
Mat Steel (1) Req’d
6,35 (.250)
40
(1.575)
Mat: Steel (1) Req’d
2 (.0787) Thk
4,75
(.187)
20
(.787)
16
(.630)
R 6
(.236)
FURIA HELICOPTER -
Plans Delivery.com COPYRIGHT©2001 Osvaldo Durana
TAIL ROTOR CONTROL
66
FULL SIZE
FULL SIZE
FULL SIZE
BEARING HOUSING
SCISSORS HINGE
SCISSORS B
45,5
(1.791)
8 (.315)
6,5 (.256)
9
(.354)
R 6,35
(.250)
16
(.630)
R 4
(.157)
15
(.590)
3 (.118)
61
(2.401)
12,7
(.500)
22 (.866)
33
(1.300)
R 2 (.0787)
R 3
(.118) 24
(.944)
23
(.905)
27,5
(1.082)
3 (.118)
Mat: 2024-T3 Aluminum (1) Req’dMat: 2024-T3 Aluminum (1) Req’d
TOP VIEW
FRONT VIEW
FRONT VIEW
SIDE VIEW
SECTION A-A
A
A
7,9
(.3125)
24
(.945)
0,5
(.0196)
35
(1.378)
30,5
(1.200)
10
(.394)
15
(.590)
15
(.590)
19
(.748)
21
(.827)
4,5 (.177)
6
(.236)
Mat: 2024-T3 Aluminum (2) Req’d (Upper and Lower)
FRONT
VIEW SIDE
VIEW
6
(.236)
4,75
(.187)
16
(.630)
5(.197)
16,5
(.650)
6
(.236)
6,5(.256)
11 (.433)
14
(.551)
UPPER
LOWER
FURIA HELICOPTER -
Plans Delivery.com COPYRIGHT©2001 Osvaldo Durana
CONTROL SYSTEM /PEDALS
67
FULL SIZE
FULL SIZE
FULL SIZE
582
(22.913)
6
(.236)
weld Lever
32
(1.260)
90
(3.54)
6,35
(.250)
8
(.315)
16
(.630)
28
(1.10)
2(.0787)
19
(3/4”)
1,50
(.058)
Wall Thk
10 (.394)
8 (.315)
8 (.315)
22,2 (7/8”)- 1,60 (.065) Wall Thk
195
(7.677)
203
(8.00)
R 85
(3.346)
85
(3.346)
16
(.630)
1/4”-28
UNF
Weld
DETAIL A
DETAIL A
PEDALS AXLE
LEFT PEDAL
LEVER
DIRECTIONAL CONTROL PEDALS
Mat: 4130 Steel tubing 15,8 (5/8”) O.D. - 2,4 (.095) Wall Thk.
(1) Req’d
NOTE: Left pedal is fixed to axle by Clevis Pin
Right pedal is free to rotate
Mat: 4130 Steel 2 (.0787) Thk (2) req’d
FRONT VIEW
Axle Threaded ends
Mat: Steel
FURIA HELICOPTER -
Plans Delivery.com COPYRIGHT©2001 Osvaldo Durana
CONTROL SYSTEM / PEDALS
68
FULL SIZE
FULL SIZE
FULL SIZE
FULL SIZE
250
(9.842)
30
(1.181)
6,35 (.250)
6,35 (.250)
80
(3.15)
7 (.275)
5 (.197)
45
(1.77)
40
(1.575)
15
(.591)
A
A
28
(1.10)
R 10
(.394)
6,35 (.250)
Heel Support
Weld
65
(2.56)
SECTION A-A
8
(.315)
8
(.315)
MAIN LEVER
Mat: 2024-T3 Aluminum 5 (.197) Thk (1) Req’d
HEEL SUPPORT
Mat: 4130 Steel 2 (.080) Thk
(2) Req’d
LEFT PEDAL
SIDE VIEW
FURIA HELICOPTER -
Plans Delivery.com COPYRIGHT©2001 Osvaldo Durana
TAIL ROTOR BLADE
69
FULL SIZE
460
(18.110)
96
(3.780)
25,4
(1.00)
43
(1.693)
13
(.512)
24
(.945)
48
(1.89)
12
(.472)
48
(1.89)
30
(1.181)
36
(1.417)
31
(1.220) 55
(2.165)
6,35
(.250)
12
(.472)
21 (.827)
31 (1.220)
104
(4.094)
SKIN
Mat: 2024-T3 Aluminum 0,5 (.020) Thk
REINFORCEMENT
Mat: 2024-T3 Aluminum 0,5 (.020) Thk (4) Req’d One on each side (inner side only)
BLADE TIP BLADE ROOT
Mat: 2024-T3 Aluminum
(2) Req’d
Mat: 2024-T3 Aluminum
(2) Req’d13,8
(.5433)
94
(3.700)
85
(3.346)
10
(.394) 25,4
(1.00)
6,35
(.250)
FURIA HELICOPTER -
Plans Delivery.com COPYRIGHT©2001 Osvaldo Durana
CENTRALGEARBOX
70
80
(3.15”)
42
(1.65”)
9 (.35”)
98
(3.85”)
55
(2.16”)
Dia. 70 (2.75”)
Recess to suit
upper Bearing
Cover
Dia. 45 (1.77”)
10-32 UNF
(see Bearing cover for
hole position details)
1/4” -28 UNF
4 Holes Eq. Sp.
Dia 64 (2.520”)
2 (.078”)
CENTRAL GEARBOX
END VIEW
TOP VIEWMaterial: Aluminum 1- Reqd.
A
A
FURIA HELICOPTER -
Plans Delivery.com COPYRIGHT©2001 Osvaldo Durana
CENTRALGEARBOX
71
CENTRAL GEARBOX
BOTTOM VIEW
FRONT VIEW
42,4
(1.67”)
Dia 36 (1.41”)
Dia 65 (2.56”)
Recess to suit Lower
Bearing Cover
10-32 UNF
Dia 57 (2.24”)
44
(1.73”)
36,4
(1.43”)
Dia 64
(2.52”)
Dia 55
(2.16”)
2 (.078”)
Dia 89 (3.50”)
1/4-28”
UNF
10-32 UNF
81 (3.188”)
FURIA HELICOPTER -
Plans Delivery.com COPYRIGHT©2001 Osvaldo Durana
CENTRALGEARBOX
COUPLING (Long Axle Central Gearbox)
CENTRAL GEARBOX
SECTION A-A
Mat Steel - 1 Req’d
Mat Steel - 1 Req’d.
84
(3.30”)
R 2 (.078”)
R 2 (.078”)
45
(1.77”)
38
(1.49”)
R1(.039”)
3 (.118”) 45
(1.77”)
26
(1.02”)25.4
(1”)
14.28
(.562”)
15(.59”)
25
(.984”)
R1(.039”)
43,5
(1.71”)
3,5
(.137”)
Dia 68
(2.67”)
Dia 8
(.314”)R 8(.314”)
80,8
(3.18”)
40,4
(1.59”)
40,4
(1.59”)
56
(2.20”) 45
(1.77”)
2 (.078”)
36
(1.41”)
50
(1.96”)
10
(.39”)
19
(.748”)
Dia 6,35
(.250”)
30
(1.18”)
20
(.787”)
21
(.826”)
5 (.196”)
20
(.787”)
25
(.984”)
11,28
(.444”)
9/16-18
UNF
Dia 14,28
(.562”)
27
(1.06”)
25,4
(1”)
17
(.669”)
195
(7.677”)
See Details of gear cutting data
on page #59
72
LONG AXLE
FURIA HELICOPTER -
Plans Delivery.com COPYRIGHT©2001 Osvaldo Durana
UPPER BEARING COVER LOWER BEARING COVER
44
(1.73”)
5 (.197”)
Dia 62 (2.44”)
Dia 70
(2.75”)
44
(1.73”)
55
(2.16”)
50
(1.96”)
40
(1.57”)
35
(1.37”)
Chamfer
24
(.94”)
14
(.55”)
47
(1.85”)
To suit
Bearing
6005
Material: Aluminum, 1 Reqd. Material: Aluminum, 1 Reqd.
73
44
(1.73”)
36
(1.41”)
50
(1.96”)
5 (.197”)
Dia 57 (2.24”)
Dia 65 (2.55”)
45
(1.77”)
35
(1.37”)
30
(1.18”)
42
(1.65”)
To suit
Bearing
6004
22
(.86”)12
(.47”)
CENTRALGEARBOXBEARINGCOVERS
12
(.47”)
12
(.47”)
FURIA HELICOPTER -
Plans Delivery.com COPYRIGHT©2001 Osvaldo Durana
25
(.98”)
6
(.23”)
12
(.47”)
59
(2.32”)
47
(1.85”)
41
(1.61”)
To suit
Bea.
6005
100
(3.93”)
Dia 6.35
(.250”)
6 Holes
EQ.SP.
Dia 84
(3.30”)
PULLEY SUPPORT
MAIN ROTOR GEARBOX
PINION AXLE
TRANSMISION COMPONENTS
3/4”-16
UNF
10
(.39”)
55
(2.16”)
Chamfer
R 6 (.236”)
16
(.629”)
42
(1.65”)
29
(1.14”)
28,5
(1.12”)
171
(6.73”)
76
(2.99”)
Dia 6.35 (.250”) Dia 25
(.984”)
16
(.629”)
31
(1.22”)
14
(.55”)
Mat. Aluminum 1 Req’d.
Connecting
Rings
Dia 90
(3.54”)
Dia 68
(2.67”)
Dia 40
(1.57”)
Dia 8 (.314”) 4
Holes Eq. Sp. 2-Req’d.
2 (.078”) Thk
74
FURIA HELICOPTER -
Plans Delivery.com COPYRIGHT©2001 Osvaldo Durana
66
(2.59”)
6
(.23”)
16
(.62”)
3
(.118)
3
(.118)
7,4
(.29”)
16
(.62”)
6
(.23”)
89
(3.50”)
74
(2.91”)
58
(2.28”)
R 4 (.157”)
25
(.98”)
37º
14
(.55”)
116
(4.56”)
Dia 8
(.314”)
TRANSMISION - ENGINE PULLEY
ENGINE PULLEY
Mat: Aluminum - 1 Req’d
75
FURIA HELICOPTER -
Plans Delivery.com COPYRIGHT©2001 Osvaldo Durana
TRANSMISION COMPONENTS
CENTRAL GEARBOX PULLEY
and Freewheel housing
153
(6.02”)
117
(4.60”)
72
(2.83”)
5 (.197”)
2 (.078”)
65
(2.56”)
117
(4.60”)
25
(.98”)
42
(1.65”)
6
(.236”)
3
(.118”)
66
(2.59”)
16
(.62)
7,4
(.29”)
76
FREEWHEEL AXLE
Mat: Steel 1req’d
19
(748”) Chamfer
10
(.393”)
Dia 6,35
(.250”)
57
(2.24”)
35
(1.377”)
102
(4.01”)
R2(.078”)
19
(.748”)
2
(.078”)
39
(1.53”)
29
(1.14”)
20
(.787”)
25
(.984”)
Transmision shaft
Mat: 4130 Steel Tube O.D. 38
(1-1/2”) Wall Thk. 1,6 (.065”)
1 Req’d
38 (1-1/2”)
17
(.669”)
32
(1.26”)
17
(.669”)
32
(1.26”)
440
(17.32”)
Dia 6,35
(.250”)
Freewheel:
Type 202-...-030 Size 35
Rexnord Antriebstechnik Dortmund
E-mail: info@rexnord-antrieb.de
FURIA HELICOPTER -
Plans Delivery.com COPYRIGHT©2001 Osvaldo Durana
TRANSMISION COMPONENTS
77
SHAFT COUPLINGS
LONG/FREEWHEEL AXLE
COUPLING
MAIN ROTOR GEARBOX
PINION AXLE COUPLING
R 22 (.866”)
R 8 (.314”)
Dia 8 (.314”)
Dia 68 (2.67”)
34.7
(1.366”)
Dia 6,35
(.250”)
10
(.393”)
25
(.984”)
46
(1.81”)
3,5 (.137”)
29
(1.14”)
84
(3.30”)
Mat Steel 1 req’d
70
(2.75”)
31
(1.22”)
17,5
(.688”)
17,5
(.688”)
Dia 6,35
(.250”)
19
(.748”)
Mat: Steel 1-Req’d
Weld
Weld
R 22 (.866”)
R 8 (.314”)
Dia 8 (.314”)
Dia 68 (2.67”)
32 (1.25”)
10
(.393)
Dia
6,35
(.250”)
25 (.984”)
84 (3.30”)
25
(.984”) 40
(1.57”)
3,5
Mat: Steel - 2 Req’d.
FURIA HELICOPTER -
Plans Delivery.com COPYRIGHT©2001 Osvaldo Durana
TRANSMISION SECTION VIEW
78
MAIN GEARBOX
Note: some elements have not been
depicted to simplify views
PINION
PINION AXLE
PINION AXLE
COUPLING
CONNECTING DISK
SHAFT COUPLING
SHAFT
MAST TUBE
FURIA HELICOPTER -
Plans Delivery.com COPYRIGHT©2001 Osvaldo Durana
TRANSMISION SECTION VIEW
79
SHAFT
SHAFT COUPLING
LONG AXLE COUPLING
UPPER BEARING COVER
GEAR (Transmision to Tail Rotor)
LOWER BEARING COUPLING
LONG/FREEWHEELAXLE COUPLING
ENGINE
PULLEY
PULLEY SUPPORT
PULLEY
FREEWHEEL
MAST TUBE
PRIMARY
STRUCTURE
FREEWHEEL
AXLE
CONNECTING DISK
Note: Gearbox case have not been depicted to simplify view
FURIA HELICOPTER -
Plans Delivery.com COPYRIGHT©2001 Osvaldo Durana
PLANS LICENSE AGREEMENT*
—————————————————————
1.  License.  Plans Delivery.com hereby licenses to you one electronic copy of the electronic plans (s) you have installed (the “Plans”).  Plans Delivery.com retains all right, title and interest in and to the Plans. That
Plans and all parts thereof are the subject matter of various proprietary rights, including without limitation copyrights, trade secrets, patents and other similar intellectual and industrial property rights (“Proprietary
Rights”).
ThisLicensepermitsyoutousethePlansonasinglepersonalcomputerorworkstationandtomakeonecopyofthePlansinmachine-readableformforbackuppurposesonly.  Withinanysuchcopy,youmustreproduce
the copyright notices and any other proprietary legends that were on the original downloaded copy of the Plans. No license, right or interest in any trademark, trade name or service mark of Plans Delivery.com or any
third party is granted under this License.  You acknowledge that neither this License, nor your subsequent registration of the Plans  (should you choose to register the Plans, and thereby receive additional information
and updates from time to time), shall in any way be construed to provide an express or implied license to use, modify or improve any of the content of the Plans, including without limitation any works, inventions,
discoveries, technology or other items which are the subject matter of Plans Delivery.com’s Proprietary Rights, or otherwise to use or exploit the Plans or the Proprietary Rights in any matter not expressly permitted
herein.
 
2.  Restrictions.  You may not attempt to create or derive any of the source code or other technology or data within the Plans by disassembly, reverse engineering or any other method, or otherwise reduce the Plans
toahuman-perceivableform. YoumaynotmodifyortranslateanypartofthePlans. Youmaynotuse,disclose,distribute,makeorhavemadeanycopiesofthePlans,inwholeorinpart,norrent,leaseorlendthePlans
without the prior written authorization of Plans Delivery.com, provided, however, that you may maintain a backup copy of the Plans during the term of this License.  Youagree to provide notice to Plans Delivery.com
immediately after learning of or having reason to suspect a breach of any of the provisions set forth in this License.
 
3.  Termination.  This License is effective until terminated.  You may terminate this License at any time by destroying the Plans, and all copies thereof.  This License will terminate immediately without notice from
Plans Delivery.com if you fail to comply with any provision of this License.  Upon termination, you must destroy the Plans and all copies thereof.
 
4. DisclaimerofWarranty.  REGARDLESSOFWHETHERYOULATERCHOOSETOREGISTERYOURCOPYOFTHEPLANS,THEPLANSANDRELATEDDOCUMENTATIONAREPROVIDED“ASIS,”
WITHOUTWARRANTYOFANYKIND,ANDPLANSDELIVERY.COMEXPRESSLYDISCLAIMSALLWARRANTIES,EXPRESSORIMPLIED,INCLUDING,BUTNOTLIMITEDTO,THEIMPLIEDWARRAN-
TIESOFDESIGN,MERCHANTABILITY,FITNESSFORAPARTICULARPURPOSE,ORNON-INFRINGEMENT,ANYWARRANTIESARISINGFROMACOURSEOFDEALING,USAGE,ORTRADEPRACTICE,
ORANYWARRANTIESOFNON-INFRINGEMENTOFANYTHIRDPARTY’SPATENT(S),TRADESECRET(S),COPYRIGHT(S)OROTHERINTELLECTUALPROPERTYRIGHTS. PLANSDELIVERY.COM
DOESNOTWARRANTTHATTHEFUNCTIONSCONTAINEDINTHEPLANSWILLMEETYOURREQUIREMENTS,ORTHATTHEOPERATIONOFTHEPLANSWILLBEUNINTERRUPTEDORERROR-FREE,
ORTHATDEFECTSINTHEPLANSWILLBECORRECTED.
Furthermore, Plans Delivery.com does not warrant or make any representations regarding the use or the results of the use of the plans or related documentation in terms of their correctness, accuracy, reliability,
orotherwise. NooralorwritteninformationoradvicegivenbyPlansDelivery.comorPlansDelivery.com’sauthorizedrepresentativeshallcreateanywarrantyorinanywayincreasethescopeofthiswarranty. Should
the Plans prove defective, you (and not Plans Delivery.com or Plans Delivery.com’s authorized representative) assume the entire cost of all necessary servicing, repair or correction. 
5. LimitationofLiability. UNDERNOCIRCUMSTANCES,INCLUDINGNEGLIGENCE,SHALLPLANSDELIVERY.COMBELIABLEFORANYLOSTREVENUEORPROFITSORANYINCIDENTAL,INDIRECT,
SPECIAL,ORCONSEQUENTIALDAMAGES,INCLUDINGBUTNOTLIMITEDTODEATH,ASTOALLPERSONSANDTOALLPROPERTY,CAUSEDBY,RESULTINGFROM,ARISINGOUTOF, OR
OCCURRINGASTHERESULTOFTHEUSEORINABILITYTOUSETHEPLANSORRELATEDDOCUMENTATION,EVENIFPLANSDELIVERY.COMORPLANSDELIVERY.COM’SAUTHORIZEDREPRESEN-
TATIVEHASBEENADVISEDOFTHEPOSSIBILITYOFSUCHDAMAGES. SOMESTATESDONOTALLOWTHELIMITATIONOREXCLUSIONOFLIABILITYFORINCIDENTALORCONSEQUENTIAL
DAMAGESSOTHEABOVELIMITATIONOREXCLUSIONMAYNOTAPPLYTOYOU. INNOEVENTSHALLPLANSDELIVERY.COM’STOTALLIABILITYTOYOUFORALLDAMAGES,LOSSES,AND
CAUSESOFACTION,WHETHERINCONTRACT,TORT(INCLUDINGNEGLIGENCE)OROTHERWISE,EXCEEDTHEAMOUNTPAIDBYYOUFORTHEPLANS.
 
6.  Complete Agreement.  This License constitutes the entire agreement between the parties with respect to the use of the Plans and supersedes all prior or contemporaneous understandings or agreements, writ-
ten or oral, regarding such subject matter.
 
* Copy of the agreement accepted by you prior buying the plans* Copy of the agreement accepted by you prior buying the plans* Copy of the agreement accepted by you prior buying the plans* Copy of the agreement accepted by you prior buying the plans* Copy of the agreement accepted by you prior buying the plans
LICENCEAGREEMENT
80

Furia ultralight helicopter plans 2

  • 1.
    FURIA HELICOPTER - PlansDelivery.com COPYRIGHT©2001 Osvaldo Durana 1 OSVALDO DURANA FURIA HOMEBUILT HELICOPTER CONSTRUCTION PLANS Specifications Main Rotor Diameter: 19 ft. Tail Rotor Diameter: 3.6 ft. Height: 6.9 ft. Lenght: 12.5 ft. Max Gross Wt.: 700 lbs. Empty W.: 325 lbs. Payload (with full fuel) 350 lbs. Fuel Capacity: 8 gal. Seats: 1 Range: 80 sm. Takeoff distance: 0 ft. Landing Distance: 0 ft. Vmax: 95 mph (max allowable speed -level flight sea level, std. Day) Vcr: 70 mph Climb rate @ msl: 1.100 fpm Service Ceiling: 12.500 ft Engine: Rotax 65 hp A-17-1 Visit www.plansdelivery.com regularly for Updates, News and Tips. PERSPECTIVE VIEW
  • 2.
    FURIA HELICOPTER - PlansDelivery.com COPYRIGHT©2001 Osvaldo Durana SIDE VIEW TOP VIEW TOP AND SIDE VIEWS 2 OSVALDO DURANA
  • 3.
    FURIA HELICOPTER - PlansDelivery.com COPYRIGHT©2001 Osvaldo Durana MAIN ROTOR HEAD 3 MAINROTORHEAD OSVALDO DURANA
  • 4.
    FURIA HELICOPTER - PlansDelivery.com COPYRIGHT©2001 Osvaldo Durana 4 MAIN ROTORHEADASSEMBLY 1 2 3 4 5 6 7 8 5 9 10 11 12 3 2 13 14 15 17 18 19 20 18 13 11 10 9 5 6 7 16 12 3 1 - Pivot head (2) 2 -Blade grip (4) 3 -Reinforcement strap (4) 4 - Bolt AN3 (2) 5 -Claw (4) 6 -Shell type bearing BK1514RS (2) 7 - Axle A (2) 8 - Elastic stop nut AN 364-1032 (2) 9 - Shell type bearing BK1522 (2) 10 - Thrust bea. AXW15 - (2) washers AS1528 (2) LS1528 (2) 11 - Axle B (2) 12 - Axle housing (2) 13 - Axle grip (2) 14 - Elastic stop nut AN 365-524 (4) 15 - Blade control horn (2) 16 - Center plates (3) 17 - Bolt AN3 (8) 18 - Bolt AN4 (8) 19 - Bolt AN3 (2) 20 - Bolt AN5 (4) Not shown: Elastic stop nuts AN 365-428 (8) Elastic stop nuts AN 365-1032 (8) PART LIST - Key number / Name / (Quantity) OSVALDO DURANA
  • 5.
    FURIA HELICOPTER - PlansDelivery.com COPYRIGHT©2001 Osvaldo Durana 5 MAINROTORHEAD Top View Section A-A Upper Blade Grip A A Blade Control Horn Note: Upper blade grip and reinforcement strap have been omited to show central plates and other components. Bearings from INA Catalog INA BEARING COMPANY, INC. One Ina Drive, Cheraw, South Carolina 29520 Phone: (803) 537-9341 Side View Blade Control Horn Pivot HeadAxle Grip Claws Axle Housing Upper Blade Grip Reinforcement Strap 1 Axle Reinforcement Strap Shell Type Bearings A B C 2 Thrust Bearings and washers Axle CenterPlates Bearings: A= Shell Type BK1514 RS (sealed) 2 Req’d. B= Shell Type BK1522 (2 Req’d.) C= Thrust (neddle roller) AX15 - Washers AS 1528 and LS 1528 (2 of each one req’d)
  • 6.
    FURIA HELICOPTER - PlansDelivery.com COPYRIGHT©2001 Osvaldo Durana 1 2 3 4 5 6 7 8 9 10 111213 14 15 12 11 16 17 18 19 20 21 22 23 24 25 26 27 28 29 30 31 34 33 32 35 36 1) Blade control master horn 2) Control sliding axle 3) Ball 4) Shell type bearing HK 1522 5) Main rotor axle 6) Bearing cover 7) Bushing 8) Race / bushing 9) Pivot head 10) Center plates 11) Gasket 12) Bearing 7013 13) Main gear 14) Gearbox housing upper half 15) Gearbox housing lower half 16) Gearbox attachment ring 17) Race / nut 18) Ball / Bearing housing 19) Ball race 20) Nut B 21) Cyclic/Collective central link 22) Main rotor mast 23) Bearing 6002 Z 24) Nut A 25) Central uniball housing 26) Central Push-Pull tube 27) Pinion shaft 28) Gasket 29) Snap ring 30) Bearing 6205 31) Pinion housing 32) Push-Pull axle 33) Bushing 34) Pin 35) Pinion 36) Gearbox lid 6 MAINROTORANDGEARBOX Key number / Name / (Quantity)
  • 7.
    FURIA HELICOPTER - PlansDelivery.com COPYRIGHT©2001 Osvaldo Durana 7 1 2 3 4 5 6 7 8 9 10 5 11 12 13 14 13 15 1) Main rotor shaft 2) Main gear 3) Bolt AN3 (25) 4) Gearbox housing upper half 5) Gasket (3) 6) Bolt AN3 (10) 7) Gearbox lid 8) Ball bearing 7013 (2) 9) Gearbox housing lower half 10) Elastic stop nut AN 365-1032 (25) 11) Pinion 12) pInion shaft 13) Ball Bearing 6205 (2) 14) Pinion housing 15) Gaskets Not shown: *main shaft woodroff keys (3) * Pinion housing internal snap ring. Part List Key number / name / Quantity MAIN ROTORGEARBOXASSEMBLY OSVALDODURANA
  • 8.
    FURIA HELICOPTER - PlansDelivery.com COPYRIGHT©2001 Osvaldo Durana 8 12 13 14 15 16 17 18 19 20 21 22 8 5 6 7 6 5 10 11 12 1 2 3 4 1) Main rotor gearbox 2) Gearbox attachment ring 3) Bolt AN4 (6) 4) Main rotor mast 5) Bushing (2) 6) Bushing A ( 2) 7) Ball 8) Main rotor axle 9) Pin 10) Control sliding axle 11) Bushing 12) Push-Pull axle 13) Race-nut 14) Ball bearing housing 15) Bearing 600 Z (1) 16) Nut A 17) Nut B 18) Ball race 19) Central uniball housing 20 ) Elastic stop nut AN364-1032 (1) 21) Central Push-Pull tube 22) Bolt AN3 (1) Part List Key number/name/quantity MAIN GEARBOX/CONTROL SYS. ASSY. OSVALDODURANA
  • 9.
    FURIA HELICOPTER - PlansDelivery.com COPYRIGHT©2001 Osvaldo Durana 9 14 13 12 11 10 9 8 7 6 4 5 4 3 2 1 17 18 19 1) Collective central push-pull tube 2) Main rotor tube mast 3) Cyclic push-pull tube 4) Bushing spacers (4) 5) Cyclic upper bellcranck (2) 6) Cotter pin (6) 7) Clevis pin AN394 (4) 8) Elastic stop nut AN364-428 (2) 9) Upper Bellcranck mounting bracket (2) 10) Rod end HMVV-4 (2) 11) Locking nut AN316-4R (2) 12) Control linkage (2) 13) Locking nut AN316-4L (2) 14) Rod end HMLVV-4 (2) 15) Clevis pin AN394 (2) 16) Cyclic/collective central link (1) 17) Bolt AN4 (2) 18) Bolt AN3 (8) 19) Bellcranks central bracket 20) elastic stop nut (not shown) AN365-1032 (8) CONTROLSYSTEM OSVALDODURANA Key number / Name / (Quantity)
  • 10.
    FURIA HELICOPTER - PlansDelivery.com COPYRIGHT©2001 Osvaldo Durana 10 Cyclic control stick Cyclic control push-pull tubes (A and B) B Spacer Lever Lateral stop Torque tube Bracket A Collective Linkage Central push-pull tube Bellcranks mounting ring Collective lower bellcranck Collective control stickCyclic lower bellcrank Cyclic control Push-pull tube (fore-aft) Nylon bushing Travel limiting stop Cyclic stick holder CONTROLSYSTEM O SVA LD O D U R A N A
  • 11.
    FURIA HELICOPTER - PlansDelivery.com COPYRIGHT©2001 Osvaldo Durana 11 1 2 3 4 5 6 7 8 9 10 11 12 13 14 15 16 17 18 19 20 21 22 23 24 25 26 27 28 29 33 32 31 30 34 35 36 37 3839 40 TAILROTOR ASSEMBLY OSVALDO DURANA
  • 12.
    FURIA HELICOPTER - PlansDelivery.com COPYRIGHT©2001 Osvaldo Durana 12 1 2 3 4 5 6 7 8 9 10 11 12 13 14 15 16 17 18 19 20 21 22 23 24 25 27 23 26 TAILROTORGEARBOXASSEMBLY OSVALDO DURANA
  • 13.
    FURIA HELICOPTER - PlansDelivery.com COPYRIGHT©2001 Osvaldo Durana 13 1 23 22 21 6 7 8 9 10 18 17 16 13 19 20 15 13 14 11 11 12 13 6 3 2 4 5 3 2 TAIL ROTOR PITCH CONTROL ASSY. OSVALDO DURANA Attach tail rotor hub here 13
  • 14.
    FURIA HELICOPTER - PlansDelivery.com COPYRIGHT©2001 Osvaldo Durana TAIL ROTOR GEARBOX 1) Pinion 2) Gasket 3) Bolt AN3 4) Flat Washer 5) Bearing Cover (Large) 6) Bearing 16005 7) Pitch Control Axle 8) Bolts AN3 9) Bolts AN3 10) Gearbox Lid 11) Gearbox Housing 12) Oil Screws 13) Bearing EE5 14) Bushing Spacer 1) Tail Rotor Blade 2) Bolt AN3 3) Tail Blade Grip 4) Bearing 6200 5) Axle Nut 6) Bearing FAG 525277 7) Blade Grip Nut 8) O’Ring 9) Pitch Control Horn 10) Flat Washer 11) Elastic Stop Nut 12) Axle 13) Tail Rotor Hub 14) Axle Pivot Nut 15) Axle Pivot Screw 16) Pin 17) Pitch Control Head Guide 18) Retainer Nut 19) Safety Wire Spring 20) Bolt AN4 26) Rod End Male HMVV4 27) Flat Washer 28) Clevis Pin 29) Cotter Pin 30)Pitch Control Head 31) Flat Washer 32) Castle Nut 33) Cotter Pin 34) Elastic Stop Nut 35) Flat Washer 36) Bushing 37) Bolt AN4 38) Flat Washer 39) Flat Washer 40) Elastic Stop Nut 21) Conical Washer 22) Rod End Male HMLVV-4 23) Nut AN316-4R 24) Control Linkage 25) Nut AN316-4R 15) Bolt AN3 16) Nut C 17) Gasket 18) Bolt AN3 19) Bearing Cover (Small) 20) Gearbox Rear Cap 21) Flat Washer 22) Bolts AN4 23) Bearing 24) Gasket 25) Nut D 26) Steel Bushing 27) Gear TAIL ROTOR ASSEMBLY TAIL ROTOR PITCH CONTROL ASSEMBLY 1) Tail Rotor Gearbox 2) Scissors Hinge 3) Bolt AN3H 4) Scissors B and Axle 5) Lever 6) Scissors A 7) Bearing Housing 8) Bearing 9) Internal Snap Ring 10) Self Locking Castle Nut/Cotter Pin 11) Bolt AN3 12) Turnbuckle Assy. AN150-16L 13) Elastic Stop Nut AN364-1032 14) Pulley Arm 15) Bolt AN4 16) Control Cable Galvanized 1/8”-7x19 17) Cable Clamp 18) Bolt AN3 19) Control Pulley 20) Bolt AN3 21) Flat Washer 22) Elastic Stop Nut AN365-428 23) Tail Boom Not Shown: Bolts AN3H to attach gearbox to tail boom 11 12 13 Part List - page 11 Part List - page 12 Part List - Page 13 PART LIST - PAGES 11-12-13 14
  • 15.
    FURIA HELICOPTER - PlansDelivery.com COPYRIGHT©2001 Osvaldo Durana 15 4 3 2 1 5 6 7 8 9 10 13 14 11 12 1) Retaining washer (3) 2) Nylon bushing (3) 3) Internal bracket (3) 4) Elastic stop nut AN365-1032 (18) 5) Bolt AN3 (9) 6) Shaft ends (2) 7) Elastic stop nut AN364-428 (4) 8) Bolt AN4 (4) 9) Shaft 10) Raceway (3) 11) Tail boom tube 12) Bolt AN3 (9) 13) Inspection hole cover (3) 14) Sheet metal screws (6) TAIL BOOM SHAFT ASSY OSVALDO DURANA Key number / Name / (Quantity)
  • 16.
    FURIA HELICOPTER - PlansDelivery.com COPYRIGHT©2001 Osvaldo Durana 16 Upper control pulley assembly DETAIL B Main rotor mast Directional control pedals B Cable fairleads Tail boom Control pulley Tail rotor gearbox attach here A DETAIL A Control pulley assembly CONTROLSYSTEM OSVALDO DURANA Central Gearbox
  • 17.
    FURIA HELICOPTER - PlansDelivery.com COPYRIGHT©2001 Osvaldo Durana 17 8 5676’5’ 10 9 10 3 4 1 2 11 12 13 14 17 16 15 6’ 6 5 9 10 75’ 1) Left control pedal 2) Right control pedal 3) Main lever 4) Bolt AN4-6A (2) 5) Rod ends male threaded HMVV-4 (2) 5’) Rod ends male threaded HMVV-4 left hand thd. (2) 6) Locking nut AN316-4R (thin check nut) (2) 6’) Locking nut AN316-4L (thin check nut) (2) 7) Control linkage 8) Bolt AN4-11A (2) 9) Conical safety washer (2) 10) Elastic stop nut AN364-428 (4) 11) Turnbuckle end AN669-S4 LH (2) 12) Barrel AN155-32S (2) 13) Pin eye AN165-32 SR (2) 14) Pedals axle 15) Clevis pin AN394-17 (2) 16) Cotter pin (2) 17) Flat washers (4) CONTROL SYSTEM - PEDAL ASSY OSVALDODURANA Key number / Name / (Quantity)
  • 18.
    FURIA HELICOPTER - PlansDelivery.com COPYRIGHT©2001 Osvaldo Durana 18 19 dia 1.65 wall thk (3/4” Dia .065 wall Thk) SIDE VIEW 720 (28.35) 340 (13.38) 380 (14.96) 460 (18.11) 790 (31.10) 1970 (77.55) 250 (9.84) 14,3 D. 1,65 (9/16” Dia .065 W.Thk) 90 (3.54) 320 (12.6) 14.2 Dia 1.65 W.Thk. (3/4” .065 W.Thk.) 570 (22.44) 22,2 Dia 1,65 Thk (7/8” .065 Thk) 12,7 Dia. 1,65 Thk (1/2” Dia. .065) 330 (13.0) 14,2 Dia. 1,65 W.Thk. (3/4” .065) 740 (28.35) 250 (9.85) 1630 (64.17) TOP VIEW Material :4130 Steel tubing PRIMARYSTRUCTURE
  • 19.
    FURIA HELICOPTER - PlansDelivery.com COPYRIGHT©2001 Osvaldo Durana 40 Dia (1-9/16”) To fit inside skid tubes 6 (.25) 19 (3/4”) Bevel 80 (3.15) 120 (4.72) SECTION A-A A A PERSPECTIVE VIEW TOP VIEW SIDE VIEW REAR VIEW 1500 (59.06) A 810 (31.89) 410 (16.15) O.D. 40 - 2,4 Wall Thickness 4130 Steel (1-9/16” x .095 W.Thk) 1750 (68.90) 840 (33.07) Weld all around 55 (2.18) B R 240 (9.45) 50 (1.97) DETAIL B Skids Caps Mat: Aluminum 4 Req’d DETAIL A Reinforcements 4130 Steel 2,3 (.090) 19 LANDINGGEARSKIDS
  • 20.
    FURIA HELICOPTER - PlansDelivery.com COPYRIGHT©2001 Osvaldo Durana Tail skid Tail boom Bracket B Bracket A Main rotor mast DETAIL A Rotor mast attachment brackets Drill and tap for AN4-H Bolts 1/4” - 28 USE SAFETY WIRE Mat: 4130 Steel 2 (.080) Thk Lenght 40 (1.57) Inner ring Mat: Steel (.198) W.Thk Pop Rivet ring in proper position, then drill and tap according brackets ADETAIL D Pedals brackets mat: 4130 Steel 2 (.080) Thk 2 req’d 55 (2.165) 34 (1.338) 6.35 D (.250) 22 (.866) Flat washer welded D 125 (4.921) B C DETAIL B Rotor mast lower bracket 8 (.315) Attach to bellcranks ring with AN5H bolts USE SAFETY WIRE 2) 4130 Steel tubes 3/4” O.D. .065 wall thk DETAIL C Landing gear skid seat Mat: 4130 Steel 2 (.080) Thk 4 req’d 44 (1.732) WELD TO STRUCTURER 11 (.433) 16 (.630) R 20 (.787) 26 Dia (1.024) 36 (1.417) 6,35 D (.250) Attach landing gear skids with AN4 bolts and elastic stop nuts 20 PRIMARYSTRUCTURE OSVALDO DURANA
  • 21.
    FURIA HELICOPTER - PlansDelivery.com COPYRIGHT©2001 Osvaldo Durana 21 Bracket A 18 (.709) 18 (.709) 6 (.23) 102 (4.0) 4,7 Dia (.185) 9,5 Dia (.374) 25,4 (1.0) Welded to primary structure REAR VIEW SIDE VIEW BRACKET B 2 (.080) Thk 70 (2.76) approx. 102 (4.0) 34 (1.34) REF 19 (.748) 6,35 Dia (.250) 60 (2.36) SIDE VIEW To fit aluminum tail tubes FRONT VIEW TAIL BOOM BRACKETS Material: 4130 Steel TAIL SKID (Tail rotor protector) Material: 4130 steel tubes 0,8 (.035) Wall Thickness TAIL BOOM TUBE 975 (38.38) 35 Degrees 15,8 Dia (5/8”) 12,7 Dia (1/2”) R 60 (2.36) 6 deg. 575 (22.64) 200 (7.87) Tail Skid Side view Rearview TAIL BOOM
  • 22.
    FURIA HELICOPTER - PlansDelivery.com COPYRIGHT©2001 Osvaldo Durana 22 500 (19.68) 100 (3.937) 25 (1.0) 45 Degree 25 (1.0) 1 4 95 (3.74) 160 (6.29) 300 (11.81) 80 Dia (3.15) 2 95 (3.74) 5 4 (.157) Holes 67 Dia (2.64) 6 80 (3.15) 60 Dia (2.64) 7 89 Dia (3.504) 3 Front View 250 (9.84) 75 Deg. 60 Deg. 400 (15.75) 1- ALTIMETER 2- R.P.M. 3- AIRSPEED 4- IGNITION KEY 5- TURN and BANK 6- CYLINDER HEAD TEMP 7- EXHAUST GAS TEMP Suggested instruments Material: 3 (1.181) thk 6061-T6 aluminum INSTRUMENTPANEL
  • 23.
    FURIA HELICOPTER - PlansDelivery.com COPYRIGHT©2001 Osvaldo Durana BLADE GRIP 23 40 (1.575) 18 (.708) 6,35 (.250) 6 (.236)8 (.315) 23 (.905) 8 (.315) 5 (.187) 40 (1.575) 39 (1.535) 7,9 (.3125) for counterweight mounting (on upper plates only) 11 (.433) 29 (1.142) 7,9 (.3125) 76 (2.992) 54 (2.126) 156 (6.142) 20 (.787) R 10 (.394) 7,9 (.3125) 215 (8.464) 6,35 (.250) 32 (1.260) 12 (.472) R 2,5 (.0984) 54 (2.126) 22 (.866) 62 (2.441) FULL SIZE Bushing Mat: Steel tube O.D. 1/2” I.D. 5/16” - (2) Req’d 81 (3.20) Blade Grip Counterweight Mat: 1045 Steel 2 Req’d. 40 (1.575) 23 (.905) 8 (.315) 5 (.197) 10 (.394) FULL SIZE FULL SIZE MAIN ROTOR COMPONENTS
  • 24.
    FURIA HELICOPTER - PlansDelivery.com COPYRIGHT©2001 Osvaldo Durana 24 Center Plate 47 (1.850) 28,2 (1.110) 8 (.315) Mat: 2024-T3 Aluminum 5 (.197) Thk (3) Req’d. Bend along centerline to match pivot head (4 degrees) 42 (1.653) 51 (2.007) 62 (2.441) 40 (1.575) CL Bending Line 62 (2.441) 6 (.236) 52 (2.047) 110 (4.331) 4,75 (.187) 4,75 (.187) ABBA 350 (13.780) 80 (2.559) 80 (2.559) Reinforcement Strap Mat: 2024-T3 Aluminum 5 (.197) Thk (4) Req’d. 19 (.747) 54 (2.126) 29 (1.142) 7,9 (.3125) 134 (5.276) 32 (1.260) 6,35 (.250) 62 (2.441) 22 (.866) 12 (.472) R 2,5 (.0984) 215 (8.464) MAIN ROTOR COMPONENTS
  • 25.
    FURIA HELICOPTER - PlansDelivery.com COPYRIGHT©2001 Osvaldo Durana 25 Axle Grip Mat: 2024-T3 Aluminum (2) Req’d. 7(.276) 32 (1.259) 46 (1.812) Axle B fits here 23 (.906) 4 (.158) 4 (.158) R 23 (.906) 28 (1.103) 7,93 (.3125) 29 (1.142) 54 (2.126) 15.000 14.992 (.59056) (.59024) 40 (1.575) 51 (2.00) Axle A Axle B Axles (2) of each req’d. Mat: 8620 Steel Heat Treatment: Case hardening Minimun surface hardness: 58 Rockwell C Efective case depth: 0,3 (.012) (after finish grinding) Axle Housing Mat: 2024-T3 Aluminum (2) Req’d. 22 (.866) 6,35 (.250) 32 (1.260) 46 (1.812) Axle A is Press Fit here 54 (2.126) FULL SIZE FULL SIZE FULL SIZE MAIN ROTOR COMPONENTS
  • 26.
    FURIA HELICOPTER - PlansDelivery.com COPYRIGHT©2001 Osvaldo Durana 26 15 (.591) A A FRONT VIEW BOTTOM VIEW 28 (1.103) 10 (3.94) H Dia 20.976 20.989 (.82583) (.82634) 8 (.315) 4,75 (.187) Hole 16 (.630) 3 (.119) 18 (.709) 37 (1.458) 28 (1.103) CLAW FULL SIZE Mat: 4140 Steel (4) Req’d. H Bearing housing Shell type bearings are installed here with the aid of a press 219 (8.622) 6(.236) 45 Deg. 2 (.0787) 1/4”-28 UNF 10 (.394) 26 Degree 82 (3.228) 2 (.0787) 21 (.827) 13,950 (.5492) 8-32 UNF AFTER BENDING 9 (.354) 17 (.669) BLADE CONTROL MASTER HORN Mat: 1045 Steel (1)req’d FULL SIZE MAIN ROTOR COMPONENTS BUSHING Mat: Steel (1) Req’d. FULL SIZE 23 (.906) 14.000 (.55118) 14.020 (.55197) 28.980 1.14094 32 (1.260) 6 (.236) 10 (.394) 2 (.0787)
  • 27.
    FURIA HELICOPTER - PlansDelivery.com COPYRIGHT©2001 Osvaldo Durana 27 44 (1.733) 10 (.394) 16 (.630) 6,35 (.250) 4,75 (.187) 1/4”-28 UNF 6,35 (.250) 5 (.197) 13 (.512) 8 (.315) 30 (1.182) 48 (1.890) 56 (2.205) 32 (1.260) 112 (4.410) 43 (1.693) 9 (.355) 37 (1.457) BLADE CONTROL HORN Mat: 2024-T3 Aluminum (2) req’d FULL SIZE 35 (1.378) 2 (.0787) 14.000 (.55118) 13.980 (.55039) 15 (.591) R 11 (.433) 64 (2.523) 31 (1.220) 122 (4.805) 12 (.472) 16 (.630) 31 (1.220) 6 (.236) 30.000 (1.181) 32.000 (1.260) 4,5 (.177) CONTROL SLIDING AXLE Mat: 41410 Steel (1) req’d. FULL SIZE MAIN ROTOR /CONTROL SYSTEM PIN Mat Steel (1) req’d. Lenght and chamfer according sliding axle 6 (.236)
  • 28.
    FURIA HELICOPTER - PlansDelivery.com COPYRIGHT©2001 Osvaldo Durana 28 CONTROL SYSTEM 5 (.197) 2,5 (.098) 5/16”-24 UNF 12 (.472) 7 (.275) 18 (.709) 162 (6.378) 205 (8.071) 22 (.866) 13.990 (.55079) 14.000 (.55119) 10 (.394)6 (.236) PUSH-PULL AXLE Mat: 4140 Steel (1) req’d. FULL SIZE 49 (1.929) 36 (1.417) 25,4 (1.00) R2(.0787) 6 (.236) 6 (.236) 42 (1.653) 2 deg. 13 (.512) 30 (1.181) 20.976 (.82583) 20989 (.82634) 6-32 UNF 100 (3.937) 2 Deg. 34 (1.338) 54 (2.126) 5 (.197) PIVOT HEAD Mat: 2024-T3 Aluminum 12 (.472) Thk. (2)req’d FULL SIZE BUSHING A Mat: Steel (2) req’d FULL SIZE 19 (.748) 30 (1.181) 21,8 (.858) 15.020 (.5914) 12,5 (.492) BUSHING B Mat: steel (2) req’d. FULL SIZE 24 (.945) 15.250 (.600) 108 (4.252) 15.000 (.59056) 14.992 (.59024) MAIN ROTOR AXLE Mat: 8620 steel (1) Req’d HEAT TREATMENT: Case Hardening Min. Surface Hardness: 58 Rockwell C Efective case depth: 0,3 (.012) After finish grinding FULL SIZE
  • 29.
    FURIA HELICOPTER - PlansDelivery.com COPYRIGHT©2001 Osvaldo Durana 29 MAIN ROTOR COMPONENTS 15,020 (.5914) 29,980 (1.1803) 29,990 (1.1772) BALL Mat: 8620 Steel (1) req’d. Heat Treatment: Case Hardening 58 Rockwell C FULL SIZE MAIN ROTOR SHAFT 25 Deg. 60.000 (2.362) 65.000 (2.55906) 64.987 (2.55855) 72.000 (2.835) 65.000 (2.55906) 64.987 (2.55855) 60.000 (2.362) 55 (2.165) 57 (2.244) 55 (2.165) 28 (1.102) 11 (.433)92 (3.622)13 (.512) 18 (.709) 15 (.591) 18 (.709) 20 (.787) 2(.0787) 215 (8.465) SECTION A-A A 120 Deg. Woodruff keyseats 54 (2.126) 30 deg. R 2 (.0787) A R 2 (.0787) R2 (.0787) 22.000 (.8666) 51 (2.007) 42 (1.654) 4 (.157) 7 (.275) 4 (.157) 51 (2.007) Mat: 4140 Steel (1) req’d. FULL SIZE
  • 30.
    FURIA HELICOPTER - PlansDelivery.com COPYRIGHT©2001 Osvaldo Durana 30 MAIN GEARBOX HOUSING 69,4 (2.733) 20 (.787) 25,4 (1.00) R3(.118) 25,4 (1.00) 15(.590) 4(.157) 118 (4.646) 102 (4.016) To suit mast 89 (3.504) 10 (.394) 78 (3.071) 12 7 (.276) 9 (.354) 9 (.354) 8 (.315) A 72 (2.835) 89 Dia (3.504) R 51 (2.008) 100 Dia (3.937) 35 (1.378) 151 (5.945) 300 Dia (11.811) 288 Dia (11.339) 5 (.197) 46 (1.811) A 6,5 Dia Holes (.256) 6 holes eq. sp. GEARBOX HOUSING Lower Half Mat: Aluminum casting SECTION A-A
  • 31.
    FURIA HELICOPTER - PlansDelivery.com COPYRIGHT©2001 Osvaldo Durana 31 MAIN GEARBOX HOUSING 15 (.590) 20 (.787) 2 Deg. R3(.118) 10(.394) 122 (4.803) 114 (4.488) 78 (3.071) 89 (3.504) 6 (.236) 4(.157) 100.000 (3.93701) 100.035 (3.93839) 7(.276) 16 (.629”) 9(.354) 8(.315) 2 Deg. 5 (.197) 46 (1.811) A 288 Dia (11.339) 300 Dia (11.811) 151 (5.945) 45 Deg. 100 Dia (3.937) 35 (1.378) 72 Dia (2.835) 89 Dia (3.504) A R 51 (2.008) GEARBOX HOUSING Upper half Mat: Aluminum casting 100 (3.937) 89 (3.504) 45º 5 Dia (.197) 8 holes Eq. Sp. GEARBOX LID Mat: Aluminun 4 (.157) Thk. (1) Req’d.
  • 32.
    FURIA HELICOPTER - PlansDelivery.com COPYRIGHT©2001 Osvaldo Durana 15 (.590) 246 (9.7) * 100 (3.94) 220 (8.66) R 9 (.354) 5 (.197) *) To fit in main rotor shaft 160 (6.30) 45 (1.77) GEAR PINION Full Size CUTTING DATA NUMBER OF TEETH DIAMETRAL PITCH PITCH DIAMETER OUTSIDE DIAMETER CENTERDISTANCE ADDENDUM DEDENDUM CLEARANCE WHOLE DEPTH MAINROTORGEARS GEAR 95 10 9.5 9.7 5.9 .1 .1157 .0157 .2157 PINION 23 10 2.3 2.5 5.9 .1 .1157 .0157 .2157 32 3(.118”) 3 (.118”) Dia 25 (.984”) 15 (.590”) 25 (.984”) 37 (1.456”)
  • 33.
    FURIA HELICOPTER - PlansDelivery.com COPYRIGHT©2001 Osvaldo Durana 33 MAIN ROTOR GEARBOX / PINION HOUSING PINION HOUSING 83 (3.268) 14 (.551) 2,4 (.094) 15 (.591) 36 (1.417) 16 (.630) 3 (.118) 65 (2.560) 52.000 (2.04724) 52.025 (2.04823) 55 (2.165) 45 (1.772) 52.000 (2.04724) 52.025 (2.04823) 71.975 (2.83366) Chamfer R 4 (.157) 7 (.276) 100 Dia (3.937) A SECTION A-A 89 (3.504) 45 Deg. A 5 Dia (.197) 8 holes eq. sp. Mat: Aluminum (1) req’d. FULL SIZE
  • 34.
    FURIA HELICOPTER - PlansDelivery.com COPYRIGHT©2001 Osvaldo Durana 34 MAIN ROTOR MAST FW D Holes for gearbox attachment ring 56 (2.205) 75 (2.953) 50 (1.968) 22 (.866) 38 (1.496) 1310 (51.575) Holes for belcranck mounting ring MAIN ROTOR MAST Mat.: 6061-T6 Aluminum Tube O.D. 400 (101.6) I.D. 97 (3.819) (Approx.) 101,6 (4.00) To match mast tube I.D. 10 (.394) 1/4”-28 UNF 89 (3.504) 97 (3.819) To suit mast tube I.D. 25,4 (1.00) 3(.118) A A 60 Deg. 6 Holes eq. sp. GEARBOX ATTACHMENT RING Mat: 4130 Steel FULL SIZE
  • 35.
    FURIA HELICOPTER - PlansDelivery.com COPYRIGHT©2001 Osvaldo Durana 35 CONTROL SYSTEM 10 (.394) 32,90 (1.2953) A A 26,50 (1.043) Spherical Radius 15 (.591) 5 (.039) SECTION A-A 7(.276) 1-3/8”-12 UNF *15(.591) *Spherical Radius B B 28 (1.102) 32,5 (1.280) 11 (.433) (.157) 4 3(.118) 5 (.197) SECTION B-B 7/8”-14 UNF 9 (.354) 3 (.118) 17 (.669) 3(.118) 20,5 (.807) D DSECTION D-D 5 (.197) Spherical Radius 15 (.591) 18 (.709) 22.000 (.86614) 22.021 (.86697) C C3 (.118) 15,5 (.610) 7/8”-14 UNF SECTION A-A 39.00 (1.535) 33.00 (1.299) 10 (.394) 1-3/8”-12 UNF 25 (.984) 12 (.472) 60 (2.362) 2,5 (.098) 4,75 (.187) 23 (.906)8 (.315) 16 (.634) To fit in central Push-Pull tube (collective) RACE/NUT Mat: 1050 Steel (1) req’d BALL RACE BALL/BEARING HOUSING NUT A CENTRAL UNIBALL HOUSING Mat: 1050 Steel (1) req’d Mat: 1050 Steel (1) req’d Mat. 1045 Steel (1) req’d Mat.: 1045 Steel (1) req’d HEAT TREATMENT Ball and races must have hardened surfaces (raceways) Minimun surface hardness: 58 Rockwell C FULL SIZE FULL SIZE FULL SIZE FULL SIZE FULL SIZE
  • 36.
    FURIA HELICOPTER - PlansDelivery.com COPYRIGHT©2001 Osvaldo Durana 36 CONTROL SYSTEM 25 (.984) 40 (1.575) 60 (.827) 6 (.236)17 (.669) R 8 (.315) 6,35 Dia (.250) 3 holes 6(.236) 40 (1.575) 52 (2.047) R 13 (.512) 21 (.827) R2,5(.098) 20 (.787) 12 (.472) 10 (.394) 16 (.630) 6,35 (.250) 12 (.472) 3(.118) 14 (.551) E E 5/16”-24 UNF SECTION E-E 22 (.866) 6 (.236) R 6 (.236) R2,5(.098) R 6 (.236) 6,35 (.250) 10 (.394) 22 (.866) 53 (2.087) 16 (.634) To suit Push-Pull tube (collective) R 16 (.630) 19 (.748) 10-32 UNF R 9,5 (.374) CYCLIC/COLLECTIVE Central Link Mat: 2024-T3 Aluminum (1) Req’d CYCLIC UPPER BELLCRANK NUT B Mat: 2024-T3 Aluminum (2) req’d Mat: 1045 Steel(1) req’d FULL SIZE FULL SIZE FULL SIZE FULL SIZE BUSHING -SPACER Mat: 2024-T3 Aluminum (4) Req’d
  • 37.
    FURIA HELICOPTER - PlansDelivery.com COPYRIGHT©2001 Osvaldo Durana 157 (6.18) 63 (2.48) 44 (1.732) 12 (.472) 50 (1.97) 5 (.197) 19 Dia (.748) 7,9 (.312) 97 (3.82) 48 (1.89) Nut AN316-4L Nut AN316-4R Rod End HMVV-4 Rod End HMLVV-4 51 (2.00) 2 (.08) 22 (.866) 2 (.08) 25 (.984) 12,7 (1/2”) 1/4”-28 UNF 22,2 (3/4”) 10 (.394) 8 (.315) 23 (.905) 16,32 (.6426) Dia to fit in Aluminum tubes 10 (.394) 5 (.197) 8 (.315) Lenght to suit approx. 1300 (51.18) 19 (3/4”) AN316-4R Rod End HMVV-4 8 (.315) 15 (.590) 44 (1.732) 5(.197) 13 (.512) BLADE CONTROL LINKAGE Mat: 2024-T3 Aluminum (2) req’d CENTRAL PUSH-PULL TUBE Mat: 4130 steel tube (1)req’d BLADE DRAG BRACE CONTROL SYSTEM 37 Mat: Steel Quantity: 2 of each FRONT VIEW SIDE VIEW DRAG BRACE BUSHING Mat: 2024-T3 aluminum (2) req’d PUSH-PULL TUBES THREADED ENDS Mat: 2024-T3 or 6061-T6 aluminum (7)req’d make 4 right threaded and 3 left threaded FULL SIZE FULL SIZE FULL SIZE FULL SIZE
  • 38.
    FURIA HELICOPTER - PlansDelivery.com COPYRIGHT©2001 Osvaldo Durana 59 (2.32) 5/16”-24 UNF 7/16”-20 UNF64 Dia (2.52) FWD R 41 (1.614) 60º 6 holes eq. sp. 1/4”-28 UNF 40 (1.58) 97 (3.82) 25 (.98) 3(.118) 102 (4.00) To match mast tube O.D 73 (2.874) R 9 (.354) 4 (.157) 18 (.709) 4 (.157) 6,35 Dia (.250) 64 (2.52) R 12,5 (.49) 30 (1.18) 10 (.394) R 12,5 (.492) 35 (1.378) 67 (2.638) 16 (.629) 16 (.629) 6,35 (.250) 6 holes R 9 (.354) CYCLIC CONTROL LOWER BELLCRANK COLLECTIVE CONTROL LOWER BELLCRANK BELLCRANKS MOUNTING RING SPACER BUSHING Mat: 2024-T3 aluminum 5 (.197) Thk. (1)req’d Mat: 2024-T3 Aluminum 5 (.197) Thk (1) req’d Mat: steel or brass (1)req’d 24 (.945) 12,7 (1/2”) 6,35 (.250) 18 (.709) Mat: aluminum (1) req’d CONTROL SYSTEM 38 FULL SIZE FULL SIZE FULL SIZE FULL SIZE
  • 39.
    FURIA HELICOPTER - PlansDelivery.com COPYRIGHT©2001 Osvaldo Durana 34 (1.34) 8 (.315) 15 (.590) 15 (.590) 88 (.3.46) 154 (6.06) 20 (.787) 5 Dia (.197) R 6,35 (.250) R 9 (.35) 15 (.590) 6,35 (.250) CONTROL SYSTEM 39 CYCLIC CONTROL PUSH-PULL TUBES CENTRAL BRACKET Rod ends HMVV-4 Nut AN316-4R 1040 (40.945) 1140 (44.882) Nut AN316-4L Rod end HMLVV-4 Mat: 6061-T6 aluminum tubes 19 Dia (3/4”) 1,5 (.058) wall thk (1) of each req’d Threaded ends :(see page # 36) 1070 (42.126) 1170 (46.063) A B Nut AN316-4R Nut AN316-4L Rod end HMLVV-4 Mat: 4130 steel 2 (0.80) thk (1) req’d FULL SIZE FULL SIZE
  • 40.
    FURIA HELICOPTER - PlansDelivery.com COPYRIGHT©2001 Osvaldo Durana 36 (1.42) 19 (.748) 15 (.590) 8(.315) 50 (1.97) 96 (3.78) 232 (9.13) 68 (2.68) 5 (.187) 15 (.590) 30 (1.181) 48 (1.89) 65 (.2.56) R 1,5 (.05) 9 (.354) 140 (5.51) To match main gearbox 8 (.311) R 228 (8.97) MAINGEARBOXBRACKET 40 FULL SIZE FULL SIZE MAIN GEARBOX FRONT BRACKET Mat: 4130 Steel 2 (.080) thk. (2) req’d 5 (.197) 21 (.827) 8 (.315) 36 (1.42) 6,35 (.250) 34 (1.338) 6,35 (.250) R 10 (.394) BELLCRANK BRACKET Mat: 2024-T3 Aluminum 11 (.433) Thk (2) req’d
  • 41.
    FURIA HELICOPTER - PlansDelivery.com COPYRIGHT©2001 Osvaldo Durana 7/16”-20 UNF 10-32 UNF 9 (.354) 8 (.315) 20 (.787) R 6,35 (.250) 5 holes Eq. Sp. 98 (3.86) 7 (.276) 20 (.787) R 10 (.394) 28,3 (1.118) To fit inside torque tube end (A) 10-32 UNF R 18 (.708) 12,7 (.5) 5 (.197) 15 (.590) 63 (2.48) 610 (24.02) 32 (1-1/4”) A 14 (.551) 3 (.118) 6 (.236) 44 (1.73) 37.9 (1.492) 32,3 (1.27) 37,5 (1.46) 38,2 (1.51) 5 (.197) CONTROL SYSTEM 41 FULL SIZE FULL SIZE FULL SIZE FULL SIZE5 (.197) 12,7 (.5) 28,3 (1.118) To fit inside Torque Tube 63 (2.48) 15 (.590) 101,6 (4.00) INNER REINFORCEMENT TUBE TORQUE TUBE LEVER SPACER Mat: Aluminum (1) req’d 8 (.315) 16 (.630) 20 (.787) 6,35(.250) 16 (.630) FULL SIZE NYLON BUSHING Press to install (1)req’d Mat: 2024-T3 or 6063-T6 aluminum (1) req’d Mat: 6061-T6 Aluminum 1,6 (.065) wall thk. (1) req’d. Mat: 4130 Steel 2,10 (.083) wall thk (1) req’d
  • 42.
    FURIA HELICOPTER - PlansDelivery.com COPYRIGHT©2001 Osvaldo Durana MAINGEARBOXBRACKET 42 232 (9.13) 70 (2.75) 80 (3.15) 18 (1.69) 10 (.393) 24 (.944) 43 (1.69) 5 (.187) 40 (1.57) 94 (3.70) 15 (.197) 190 (7.48) 205 (8.07) R 7 (.27) 5 (.197) MAIN GEARBOX REAR BRACKET Mat: 4130 Steel 2 (0.80) Thk (1)req’d
  • 43.
    FURIA HELICOPTER - PlansDelivery.com COPYRIGHT©2001 Osvaldo Durana 4,75 (.187) Thru 40º 14 (.551) 48 (1.89) 84 (3.307) 110º 3,25 (.128) 6,35 (.250) 54 (2.126) R 8,5 (.335) 16 (.630) 2 (.08) Thk 17 (.669) 21 (.827) 63 (2.480) A B 28,6 (1-1/8”) 2,4 (.095) Wall Thk I.D. to fit control stick 25,4 (1.00) 8 (.315) 6 (.236) 12 (.472) 5(.187) 36 (1.42) 50 (1.97) 50 (1.97) 36 (1.42) 8 (.315) R 5 (.197) 38 (1.50) 37 (1.46) 70 (2.76) R 25 (.984) CONTROL SYSTEM 43 CYCLIC CONTROL STICK HOLDER FULL SIZE FULL SIZE LATERAL STOP TORQUE TUBE BRACKET Mat: 4130 Steel (1) req’d Mat: 4130 Steel 2 (.08) Thk Mat: 2024-T3 aluminum 5 (.197) (1) req’d
  • 44.
    FURIA HELICOPTER - PlansDelivery.com COPYRIGHT©2001 Osvaldo Durana 36 (1.42) 3 (.118) 10 (.394) I.D. To slide Torque Tube In 6,35 (.250) Thru Stiffener 2 (.08) 49 (1.929) 3,5 (.138) R 7 (.275) 130º 50 (1.970) 5 (.197) 471 (18.54) 573 (22.56) Rivets Rod End HMLVV-4 Nut AN316-4R Rod End HMVV-4 Nut AN316-4L 6061-T6 Aluminum Tube 22,2 (3/4”) 1,50 (.058) Wall Thk. (1) req’d 9 (.354) 12,7 (1/2”) 12,7 (1/2”) 28,6 (1-1/8”) 3 (.118) Dia to suit stick holder A 14 (.551) 1,45 (.05) Chamfer 23 (.905) 8 (.315) B 14 (.551) Cotter Pin holes 3,175 (1/8”) 130 (5.12) 45 (1.77) 8 (.315) 5-44 UNF CONTROL SYSTEM 44 FULL SIZE FULL SIZE FULL SIZE FULL SIZE CYCLIC CONTROL PUSH-PULL TUBE TRAVEL LIMITING STOP LIMITING BAR STICK HOLDER CAPS Mat: 4130 Steel (.095) Wall Thk (1) Req’d Mat: Steel (1) req’d Mat:Aluminum (1) of each req’d
  • 45.
    FURIA HELICOPTER - PlansDelivery.com COPYRIGHT©2001 Osvaldo Durana 30 (1.18) 15 (.590) 5 (.197) 10 (.393) 40 (1.57) 72 (2.83) 97 (3.82) 87 (3.42) 16 (.63) 34 (1.34) 7 (.275) 40 (1.57) 76 (2.99) R 9 (.35) 6,35 Dia (.250) 40º 134 (5.28) Weld 178 (7.00) 40º 98 (3.86) 24 (.945) 22 (.866) 5 (.197) Thru CONTROL SYSTEM 45 FULL SIZE FULL SIZE CYCLIC CONTROL STICK Mat: 4130 Steel (1) Req’d 22,2 (7/8”) O.D. 1,65 (.065) Wall Thk (1) Req’d THROTTLE LEVER Mat: 4130 Steel (1) Req’d 62 (2.44) R 9,5 (.375) 6,35 (.250) 28 (1.10) 3 (.118) 9,5 (.38) 3 (.118) Hole thru 9,75 (.384) 12,7 (.5) 16 (.630) 2 (.080) UPPER CYCLIC BELLCRANKS MOUNTING BRACKET BENDINGLINE Mat: 4130 Steel - 2 (.080) Thk (2) req’d (left and right)
  • 46.
    FURIA HELICOPTER - PlansDelivery.com COPYRIGHT©2001 Osvaldo Durana CONTROL SYSTEM 46 FULL SIZE FULL SIZE 15 (.590) 12 (.472) 95º 45 (1.77)1/4”-28 UNF 20,2 (.795) 152 (5.98) 6,35 (.250) 5 (.197) 3 (.118) hole thru 568 (22.36) DETAIL A THREADED END 95º 6,35 (.250) R 9,5 (.375) R 15 (.590) COLLECTIVE LEVER NYLON BUSHINGS 5 (.197) 5 (.197) 10 (.394) 20,2 (.795) 24 (.945) 9,75 (.380) 32 (1.26) 22,4 (.882) 10 (.394) 10 (.394) 29,8 (1.173) 22,4 (.882) 15 (.590) 29,8 (1.173) 4 (.157) (1) of each req’d Weld 280 (11.0) 500 (19.68) 22.2 (7/8”) O.D. (.035) Wall Thk 31,7 (1-1/4”) O.D. (.035) Wall Thk A HANDLE THROTTLE CONTROL COLLECTIVE CONTROL STICK Mat: 4130 Steel tubing (1) req’d Mat: 4130 2(.080) Thk 10 (.394) Thk 4130 Steel Tube9,5 (.375) 0,8 (.035) Thk
  • 47.
    FURIA HELICOPTER - PlansDelivery.com COPYRIGHT©2001 Osvaldo Durana Note: All tubes must have a inner aluminum bar at the root - Lenght: 150 (5.905) 2680 (105.512) 25 (.984) 110 (4.331) 16 (.630) 15 (.590) 26 (1.024) Soft Rivets A B LEADING EDGE Tip Cover 20 (.787) BA TRAILING EDGE MAIN ROTOR BLADE 47 SEE SECTIONS A-A and B-B on page # 47 MAIN ROTOR BLATE TOP VIEW
  • 48.
    FURIA HELICOPTER - PlansDelivery.com COPYRIGHT©2001 Osvaldo Durana SECTION A-A 6º Blade root reinforcement plates Blade seat Reinforcements (upper and inner) Lower Steel plate Steelbushing SECTION B-B 4130 Steel tube 2024-T3 Aluminum bars 6061-T6 Aluminum tubes MAIN ROTOR BLADE 48 FULL SIZE FULL SIZE FULL SIZE MAIN ROTOR BLADE CROSS SECTIONS Dia 7,5 (.295) 153 (6.024) 27º 11 (.433) 8º MAIN BLADE SKIN SECTION Mat: 2024-T3 Aluminum 0,5 (.020) Thk Lenght: 2680 (105.51) (2) Req’d Bend the aluminum sheet to comform this shape
  • 49.
    FURIA HELICOPTER - PlansDelivery.com COPYRIGHT©2001 Osvaldo Durana 5 (.197) 12 (.472) 4 (.157) 70 (2.756) 35 (1.378) 25,4 (1.00) 145 (5.709) 16 (.630) 11 (.433) 5(.197) 20 (.787) 35 (1.378) 50 (1.968) MAIN ROTOR BLADE 49 FULL SIZE FULL SIZE FULL SIZE 12 (472) 25,4 (1.00) 23 (.905) STEEL BUSHING BLADE ROOT REINFORCEMENT PLATE Mat: 2024-T3 Aluminum 5 (.197) Thk (8) req’d INNER REINFORCEMENT Mat: 4130 Steel 1,27 (.050) Thk (2) Req’d 12 (.472) 13 (.512) 660 (25.984) 4 (.157) 2 (.0787) 20 (.787) 13 (.512) INNER REINFORCEMENT Mat: 2024-T3 Aluminum 1,27 (.050) Thk (2) Req’d 13 (.512) 640 (25.197) 20 (.787)
  • 50.
    FURIA HELICOPTER - PlansDelivery.com COPYRIGHT©2001 Osvaldo Durana MAIN ROTOR BLADE 50 FULL SIZE FULL SIZE LOWER BLADE PLATE UPPER REINFORCEMENT 4 (.157) 16 (.630) 16 (.630) 5 (.197) 20 (.787) 35 (1.378) 50 (1.968) 150 (5.905) 6 (.236) 18 (.709) 150 (5.905) 8 (.3125) 8(.3125) 8 (.3125) 12 (.472) 22 (.866) 13 (.512) 81 (3.189) 150 (5.905) 27 (1.063) Mat: 4130 Steel 2 (.080) Thk (2) Req’d Mat: 4130 Steel 2 (.080) Thk (2) Req’d
  • 51.
    FURIA HELICOPTER - PlansDelivery.com COPYRIGHT©2001 Osvaldo Durana MAIN ROTOR BLADE DETAILS 51 BLADE ROOT BLADE TIP DETAIL BLADE ROOT DETAIL BLADE TIP Outer Skin Counterweight Screws Tip Cover 6º Twist Inner reinforcement (steel) (between outer skins) Inner reinforcement (aluminum) (Between outer skins) Leading Edge Trailing Edge Inner Aluminum Bar Steel Tube Aluminum Bars Aluminum Tubes Skin Steel Rivets Upper Reinforcement Inner Reinforcement (Steel) Lower Blade Plate Root Reinforcement Plates OSVALDO DURANA OSVALDO DURANA OSVALDO DURANA
  • 52.
    FURIA HELICOPTER - PlansDelivery.com COPYRIGHT©2001 Osvaldo Durana MAIN ROTOR BLADE CONSTRUCTION 52 MAIN ROTOR BLADE CONSTRUCTION A) Setting wood jigs, check alignment and determine jigs #1 and #2. You can add wood stringers between the jigs to make the assembly stronger. B) Mount the tubes and bars over the jig so you can rivet them together, Check that tubes follow the twist. (6º) C) After cutting the tubes to allow fit counterweight at the tip (see page # 50). D) Remove the pack of tubes and bars from the jig and place the prebend aluminum skin (page # 47) over the jig, now you can place the pack of tubes and bars inside the open skin. E) Close the skin and start riveting the trailing edge, don’t forget to include the inner reinforcement strips between the skins. F) use soft rivets to hold skins and tubes. G) Finish root and tip sections, placing reinforcement plates and tip cover. C B A Blades must be balanced 0º Wood Jig 6º Wood Jig OSVALDODURANA
  • 53.
    FURIA HELICOPTER - PlansDelivery.com COPYRIGHT©2001 Osvaldo Durana MAIN ROTOR BLADE 53 FULL SIZE FULL SIZE FULL SIZE BLADE TIP 6º wood jig Cut and glue to 1/4” or 1/2” Plywood BLADE TIP COVER Mat: 2024-T-3 aluminum 5 (.197) Thk (2) req’d (Shape to suit airfoil) 3,7 (.146) FULLSIZE 0º woodjig Cutandglueto1/4”or1/2” Plywood BLADEROOT COUNTERWEIGHT Mat: lead (2) Req’d 55 (2.165) 6-32 UNF 30 (1.181) Center holes according aluminum bar centers Shape to suit airfoil
  • 54.
    FURIA HELICOPTER - PlansDelivery.com COPYRIGHT©2001 Osvaldo Durana TAIL ROTOR 54 FULL SIZE FULL SIZE FULL SIZE FULL SIZE 112,5 (4.430) 60 (2.363) 17 (.670) 31 (1.220) 61 (2.40) 8,5 (.335) 24,5 (.965) 11 (.433) 7 (.276 15,5 (.611) 8 (.315) 12,7 (.500) 98,5 (3.878) R 2 (.0787) 6,35 (.250) 61 (2.402) Dia 4 (.157) Rods are installed with the aid of a press BE CAREFULL: do not bend rods Mat: Steel PITCH CONTROL HEAD Mat: 2024-T3 Aluminum (1) Req’d 9,5 (.374) 13,5 (.532) 1-3/8”-12 UNF 2 (.0787)32.000 32.025 (1.25985) (1.26083) 9 (.354) 20,6 (.811) R2(.0787) BLADE GRIP NUT Mat: 4130 Steel (2) Req’d STEEL PIN PITCH CONTROL LINKAGE 20 (.787) (2) Req’d Mat: 1/2” hex aluminum bar (2) Req’d Chamfer 6,36 (.250) 26 (1.024) 2 (.0787) 23,5 (.925) 10(.394) 4 (.157) 1/4”-28 UNF 1/4”-28 UNF-LH
  • 55.
    FURIA HELICOPTER - PlansDelivery.com COPYRIGHT©2001 Osvaldo Durana TAIL ROTOR 55FULL SIZE FULL SIZE FULL SIZE 73 (2.874) 27 (1.063) 33 (1.299) 7,5 (.295) 43 (1.693) 6,35 (.250) 68 (2.677) 15 (.590) Spotface to cleanA 31 (1.220) 57 (2.244) 9,5 (.374) R 2 (.0787) 48 (1.889) A 6 (.236) 56 (2.205) 4,75 (.187) 6 Holes Eq. Sp. 25(.984) * 30.000 30.021 (1.18111) (1.18193) 13 (.512) 1-3/8”-12 UNF28 (1.102) 16 (.630) 22,5 (.886) 2 (.0787) 6 (.236) 33 (1.300) 83 (3.268) 4,75 (.187) 6 Holes Eq. Sp. 9 (.354) 56 (2.205) 35 (1.378) 6(.236) 41 (1.614) 68 Dia (2.687) TAIL BLADE GRIP PITCH CONTROL HORN Mat: 6061-T6 or 2024-T3 Aluminum (2) Req’d Mat: 2024-T3 Aluminum 4 (.157) Thk (2) Req’d AXLE NUT Mat: Steel (2) Req’d 5/8”-18 UNF 6,5 (.256) 25,4 (1.00) 23 (.905) 22 (.866) R 2,5 (.098) 6,35 (.250)
  • 56.
    FURIA HELICOPTER - PlansDelivery.com COPYRIGHT©2001 Osvaldo Durana TAIL ROTOR 56 FULL SIZE FULL SIZE 4,5 (.177) 21 (.827) 19 (.748) 4º 5 (.197) 6 (.236) R 2 (.0787) 11 (.433) R 16,5 (.629) 30.000 29.975 (1.18111) (1.18012) A A Keyway 3,5 x 2 (.138 x .0787) 27 (1.063) 25 (.984) 4 (.157) 35 (1.378) 28,5 (1.122) 16º 16º 14,5 (.571) 40º 5 (.197) 3 (.118) TAIL ROTOR HUB SECTION A-A ENLARGED RETAINER NUT TAIL ROTOR HUB (1) Req’d Mat: 2024-T3 Aluminum with Bronze inserts (tapered bushings) Use anaerobic adhesive to fix bush- ings in place (Loctite® ) Mat: Steel (1) Req’d A A 21 (.827) 15,5 (.610) 4(.157) 15 (.590) 5 (.197) SECTION A-A ENLARGED 2,5 (.098) 2 (.0787) Hole for safety wire 9/16”-18 UNF Chamfer 9 (.354) 2(.0787) 2 (.0787) 4 (.157) R 1.75 (.0689) 11 (.433) AXLE PIVOT SCREWS AND NUTS (ENLARGED) Mat: Steel (2) Req’d FASTEN SCREWS WITH ADHESIVE (Loctite) 5,5 (.217) 6 (.236) 19 (.709) 6,5(.256) 5/16”-24 UNF 5 (.197)
  • 57.
    FURIA HELICOPTER - PlansDelivery.com COPYRIGHT©2001 Osvaldo Durana TAIL ROTOR 57 FULL SIZE FULL SIZE FULL SIZE 124,5 (4.902) 43 (1.693) 8,5(.335) 13(.512) 10(.394) 6(.236) 6(.236) 8,5(.335) 13(.512) 10(.394) 6(.236) 6(.236) 43 (1.693) 38,5 (1.516) A A 45º 18 (.709) 30.000 30.021 (1.8111) (1.8193) 41,5 (1.634) SECTION A-A Holes for Pivot screws 5/16”-24 UNF 10.000 9.994 (.39370) (.39347) 12(.472) 16.000 15.992 (.62992) (.62961) 18 (.709) 4º 5/8”-18 UNF on both ends AXLE Mat: 4140 Steel (1) Req’d 4,25 (.167) 8,5 (.334) 16,5 (.649) 61 (2.402) 19,5 (.768) 45º Hole for pin 2 (.0787) CONTROL HEAD GUIDE Mat: Steel 2 (.0787) Thk (1) Req’d PITCH-CONTROL AXLE 70 (2.756) 11 (.433) 11 (.433) 10 (.394) 8 (.315) 1/4”-28 UNF 317 (12.480) 7 (.275) 35 (1.378) 23 (.905) 11 (.433) 11 (.433) 1/4”-28 UNF 6,35 (.250) 8 (.315) Mat: Steel (1) Req’d Once installed properly over the hub, make the 2 mm (.0787) hole on Tail Rotor Hub and place a Pin ( See tail Rotor Exploded view Page # 11
  • 58.
    FURIA HELICOPTER - PlansDelivery.com COPYRIGHT©2001 Osvaldo Durana TAIL ROTOR GEARBOX CAP FULL SIZE TAIL ROTOR GEARBOX REAR CAP A 10-32 UNF 8 Holes Eq. Sp. 6,35 (.250) 4 Holes Eq. Sp. 64 (2.520) A 101,6 (4.00) To match Tail Boom O.D. 20 (.787) 6 (.236) 97(3.819) To suit Tail Boom I.D. 50(1.968) 42.000 42.025 (1.6535) (1.6545) 54,85 (2.160) 8(.315) 28,5 (1.123) 8(.315) 13 (.512) 42.000 42.025 (1.6535) (1.6545) 50 (1.968) 55 (2.165) 6 (.236) 14 (.551) 6 (.236) 2(.0787) 5 (.197)59 (2.323) SECTION A-A Mat: Aluminum (2) Req’d 58
  • 59.
    FURIA HELICOPTER - PlansDelivery.com COPYRIGHT©2001 Osvaldo Durana TAILROTOR GEARS 59 FULL SIZE FULL SIZE FULL SIZE FULL SIZE SPLINED END 16(.630) 3/4”-16 UNF 20.000 19.991 (.78740) (.78705) 24(.945) 72 (2.835) 19 (.748) 18 (.709) 4 (.157) 11 (.433) 97 (3.819) 19 (.748) Diameter * *To suit Pitch-Control Axle (must slide freely) 9/16”-18 UNF - Left Hand 15,8 (.625) 21 (.827) 42 (1.653) 25.000 24.991 (.98425) (.98389) 22(.866) R 11 (.433) 17 (.669) 14,5(.571) 18,5 (.728) 16,4 (.646) 9/16”-18 UNF keyseat Cone must match Tail Rotor Hub R 4 (.157) 19 (.748) 6 (.236) 97 (3.819) 106 (4.173) 211 (8.307) 8 (.315) 69 (2.716) 74 (2.913) 84 (3.307) TAIL ROTOR GEARS NUMBER OF TEETH DIAMETRAL PITCH PRESSURE ANGLE PITCH DIAMETER ADDENDUM WHOLE DEEPTH CIRCULAR THICKNESS SHAFT ANGLE DEDENDUM CLEARANCE PINION 18 12 20º 1.5 .0833 .18433 .1309 90º .10103 .01773 GEAR 34 12 20º 2.833 .0833 .18433 .1309 90º .10103 .01773 GEARS CUTTING DATA NUT C Mat: Steel (1) Req’d 20 (.787) 11 (.433) 7 (.275) 16 (.630) 9/16”-18 UNF Left HandNUT D Mat: Steel (2) Req’d 28 (1.102) R 2 (.0787) 22 (.866) 3/4”-16 UNF 30 (1.181) 3 (.118) 14 (.551) Gear 2 req’d
  • 60.
    FURIA HELICOPTER - PlansDelivery.com COPYRIGHT©2001 Osvaldo Durana TAIL ROTOR GEARBOX 60 FULL SIZE 55 (2.165) 50 (1.968) 6 (.236) 4 (.157) 2 (.0787) 2 (.0787) 3 (.118) 4 (.157) 40 (1.575) 10 (.394) 10-32 UNF Dia 54 (2.125) Recess to suit Bearing Cover (Small) See Note A 35.000 35.025 (1.3779) (1.3789) Note A: Diameter 30 (1.181) 40 (1.575) 10 (.394) 10-32 UNF 45 (1.772) See Note B Note B Diameter 47.000 47.025 (1.85040) (1.85138) Dia. 66 (2.598) Recess to suit Bearing Cover 1/4”-28 UNF 4 Holes Eq. Sp. 10-32 UNF 6 Holes Eq. Sp. A 64 (2.520) 2 (.0787) A O.D.Axis I.D.Axis 73 (2.874) 95 (3.740) Dia 90 (3.543) SECTION A-A TAIL ROTOR GEARBOX Mat: Aluminum (2) Req’d 4 (.157) 7 (.275)
  • 61.
    FURIA HELICOPTER - PlansDelivery.com COPYRIGHT©2001 Osvaldo Durana TAIL ROTOR GEARBOX 61 FULL SIZE FULL SIZE FULL SIZE FULL SIZE TAIL ROTOR LID Chamfer 95 (3.740) 90 (3.543) 20 (.787)10-32 UNF 5 (.197) 6 Holes Eq. Sp. Mat: Aluminum 6 (.236) Thk (2) Req’d GEARS STEEL BUSHINGS Mat: Steel (1) of each Req’d To Suit Gear Shaft To Suit Pinion Shaft 22 (.866) 33 (1.30) 61 (2.401) 18 (.709) BEARING COVERS Mat: Aluminum (2) of each Req’d 43 (1.693) 64 (2.520) 51 (2.0) A Dia. 66 (2.598) 57 (2.244) A 75º 15 (.590) 2 (.0787) 47.000 47.025 (1.85040) (1.85138) 35 (1.378) 40 (1.575) 45 (1.772) 2 (.0787) 4 (.157) 7 (.276) B B 40 (1.575) 36 (1.417) 47 (1.850) 5 (.197) SECTION B-B SECTION A-A 30 (1.181)36 (1.417) 38 (1.496) 35.000 35.025 (1.37796) (1.37894) 4 (.157) 2 (.0787) 9 (.354) 2 (.0787) 3 (.118) BEARING EE5 BEARING 16005
  • 62.
    FURIA HELICOPTER - PlansDelivery.com COPYRIGHT©2001 Osvaldo Durana TAIL BOOM SHAFT 62 FULL SIZE FULL SIZE FULL SIZE RETAINING WASHER INTERNAL BRACKET SHAFT A A SECTION A-A 80 (3.150) 55 (2.165) Dia 90 (3.543) 5 (.197) Mat: Aluminum 0,8 (.032) Thk (3) Req’d Dia 124 (4.88) Dia 144 (5.669) 21 (.827) 55 (2.165) Dia 96,5 (3.799) 80 (3.150) 70 (2.756) R 0,5 (.020) BENDING LINES BEND 5 (.197) 15º 120º 5 (.197) Mat: 2024-T3 Aluminum 1 (.040) Thk (3) Req’d Mat: 6061-T6 Aluminum O.D. 1-1/2” (.080) Wall Thk (1) Req’d 27 (1.063) 40 (1.575) 2995 (117.913) 27 (1.063) 40 (1.575) 6,35 (.250)Holes to match Shaft End See page # 62 Holes to match Shaft End
  • 63.
    FURIA HELICOPTER - PlansDelivery.com COPYRIGHT©2001 Osvaldo Durana TAIL BOOM 63 FULL SIZE FULL SIZE SHAFT END TAIL BOOM TUBE INSPECTION HOLE COVER A A 38,18 (1.50) Broached end to match with Gear Shaft SECTION A-AChamfer 50 (1.968) 30 (1.181) 6,35 (.250) 25,4 (1.00) To Suit Tail Shaft I.D. 7 (.276) 13 (.512) 3 (.118) R Mat: 1045 Steel (2) Req’d Mat: Aluminum (.020) Thk (3) Req’d 3 (.118) 18 (.709) 36 (1.417) 39 (1.535) 48 (1.890) Holes for Tail Gearbox Inspection holes 820 (32.28) 750 (29.53) 3140 (123.622) Dia 30 (1.181) 750 (29.53) 820 (32.28) Holes for Tail Gearbox Mat: 6061-T6 Aluminum 101,6 (4.00) - 2 (.083) Wall Thk
  • 64.
    FURIA HELICOPTER - PlansDelivery.com COPYRIGHT©2001 Osvaldo Durana TAIL BOOM 64 FULL SIZE FULL SIZE BUSHING RACEWAY FULL SIZEA A 68 (2.677) 50 (1.968) Chamfer 20 (.787) 4 (.157) R 1 (.040) 42,5 (1.673) Mat: Black Grillon (with Molikote) (3) Req’d SECTION A-A 25,4 (1.00) 38,2 (1.504) To suit Tail Boom Shaft O.D. 42 (1.654) Mat: 8620 Steel (3) Req’d HEAT TREATMENT CASE HARDENING Min Surface Hardness 58 Rockwell C Efective Case Depth 0,3 (.012) (After Finish Grinding) 70 (2.756) 25,4 (1.00) 20 (.787) 6,35 (.250) 4,75 (.187) 26 (1.024) 16 (.630) 20 (.787) 3(.118) 13 (.512) CONTROL PULLEY ASSY Dia 13 (.512) Steel Control Cable 4 (.157) 6 (.236) CONTROL PULLEY Mat: 2024-T3 Aluminum (1) Req’d OSVALDO DURANA
  • 65.
    FURIA HELICOPTER - PlansDelivery.com COPYRIGHT©2001 Osvaldo Durana TAIL ROTOR CONTROL 65 FULL SIZE FULL SIZE FULL SIZE FULL SIZE SCISSORS A LEVER PULLEY ARM AXLE Mat: 2024-T3 Aluminum (1) Req’d 62 (2.440) 45 (1.772) 16 (.630) R 8 (.315) 8 (.315) 15 (.590)8 (.315) 4,7 (.187) FRONT VIEW TOP VIEW 4,5 (.630) 22 (.866) 25 (.984) 11 (.433) 3,1 (.122) Hole for Steel Pin 17,5 (.689) 25 (.866) 33 (1.300) Mat: Steel (1) Req’d 54 (2.126) 7,9 (.3125) 3(.118) Weld 13 (.512) 75 (2.953) 9 (.354) R 10 (.394) 10 (.394) R 9 (.354) 5 (.197) 8 (.315) 8 (.315) 8 (.315) 4,75 (.187) Mat Steel (1) Req’d 6,35 (.250) 40 (1.575) Mat: Steel (1) Req’d 2 (.0787) Thk 4,75 (.187) 20 (.787) 16 (.630) R 6 (.236)
  • 66.
    FURIA HELICOPTER - PlansDelivery.com COPYRIGHT©2001 Osvaldo Durana TAIL ROTOR CONTROL 66 FULL SIZE FULL SIZE FULL SIZE BEARING HOUSING SCISSORS HINGE SCISSORS B 45,5 (1.791) 8 (.315) 6,5 (.256) 9 (.354) R 6,35 (.250) 16 (.630) R 4 (.157) 15 (.590) 3 (.118) 61 (2.401) 12,7 (.500) 22 (.866) 33 (1.300) R 2 (.0787) R 3 (.118) 24 (.944) 23 (.905) 27,5 (1.082) 3 (.118) Mat: 2024-T3 Aluminum (1) Req’dMat: 2024-T3 Aluminum (1) Req’d TOP VIEW FRONT VIEW FRONT VIEW SIDE VIEW SECTION A-A A A 7,9 (.3125) 24 (.945) 0,5 (.0196) 35 (1.378) 30,5 (1.200) 10 (.394) 15 (.590) 15 (.590) 19 (.748) 21 (.827) 4,5 (.177) 6 (.236) Mat: 2024-T3 Aluminum (2) Req’d (Upper and Lower) FRONT VIEW SIDE VIEW 6 (.236) 4,75 (.187) 16 (.630) 5(.197) 16,5 (.650) 6 (.236) 6,5(.256) 11 (.433) 14 (.551) UPPER LOWER
  • 67.
    FURIA HELICOPTER - PlansDelivery.com COPYRIGHT©2001 Osvaldo Durana CONTROL SYSTEM /PEDALS 67 FULL SIZE FULL SIZE FULL SIZE 582 (22.913) 6 (.236) weld Lever 32 (1.260) 90 (3.54) 6,35 (.250) 8 (.315) 16 (.630) 28 (1.10) 2(.0787) 19 (3/4”) 1,50 (.058) Wall Thk 10 (.394) 8 (.315) 8 (.315) 22,2 (7/8”)- 1,60 (.065) Wall Thk 195 (7.677) 203 (8.00) R 85 (3.346) 85 (3.346) 16 (.630) 1/4”-28 UNF Weld DETAIL A DETAIL A PEDALS AXLE LEFT PEDAL LEVER DIRECTIONAL CONTROL PEDALS Mat: 4130 Steel tubing 15,8 (5/8”) O.D. - 2,4 (.095) Wall Thk. (1) Req’d NOTE: Left pedal is fixed to axle by Clevis Pin Right pedal is free to rotate Mat: 4130 Steel 2 (.0787) Thk (2) req’d FRONT VIEW Axle Threaded ends Mat: Steel
  • 68.
    FURIA HELICOPTER - PlansDelivery.com COPYRIGHT©2001 Osvaldo Durana CONTROL SYSTEM / PEDALS 68 FULL SIZE FULL SIZE FULL SIZE FULL SIZE 250 (9.842) 30 (1.181) 6,35 (.250) 6,35 (.250) 80 (3.15) 7 (.275) 5 (.197) 45 (1.77) 40 (1.575) 15 (.591) A A 28 (1.10) R 10 (.394) 6,35 (.250) Heel Support Weld 65 (2.56) SECTION A-A 8 (.315) 8 (.315) MAIN LEVER Mat: 2024-T3 Aluminum 5 (.197) Thk (1) Req’d HEEL SUPPORT Mat: 4130 Steel 2 (.080) Thk (2) Req’d LEFT PEDAL SIDE VIEW
  • 69.
    FURIA HELICOPTER - PlansDelivery.com COPYRIGHT©2001 Osvaldo Durana TAIL ROTOR BLADE 69 FULL SIZE 460 (18.110) 96 (3.780) 25,4 (1.00) 43 (1.693) 13 (.512) 24 (.945) 48 (1.89) 12 (.472) 48 (1.89) 30 (1.181) 36 (1.417) 31 (1.220) 55 (2.165) 6,35 (.250) 12 (.472) 21 (.827) 31 (1.220) 104 (4.094) SKIN Mat: 2024-T3 Aluminum 0,5 (.020) Thk REINFORCEMENT Mat: 2024-T3 Aluminum 0,5 (.020) Thk (4) Req’d One on each side (inner side only) BLADE TIP BLADE ROOT Mat: 2024-T3 Aluminum (2) Req’d Mat: 2024-T3 Aluminum (2) Req’d13,8 (.5433) 94 (3.700) 85 (3.346) 10 (.394) 25,4 (1.00) 6,35 (.250)
  • 70.
    FURIA HELICOPTER - PlansDelivery.com COPYRIGHT©2001 Osvaldo Durana CENTRALGEARBOX 70 80 (3.15”) 42 (1.65”) 9 (.35”) 98 (3.85”) 55 (2.16”) Dia. 70 (2.75”) Recess to suit upper Bearing Cover Dia. 45 (1.77”) 10-32 UNF (see Bearing cover for hole position details) 1/4” -28 UNF 4 Holes Eq. Sp. Dia 64 (2.520”) 2 (.078”) CENTRAL GEARBOX END VIEW TOP VIEWMaterial: Aluminum 1- Reqd. A A
  • 71.
    FURIA HELICOPTER - PlansDelivery.com COPYRIGHT©2001 Osvaldo Durana CENTRALGEARBOX 71 CENTRAL GEARBOX BOTTOM VIEW FRONT VIEW 42,4 (1.67”) Dia 36 (1.41”) Dia 65 (2.56”) Recess to suit Lower Bearing Cover 10-32 UNF Dia 57 (2.24”) 44 (1.73”) 36,4 (1.43”) Dia 64 (2.52”) Dia 55 (2.16”) 2 (.078”) Dia 89 (3.50”) 1/4-28” UNF 10-32 UNF 81 (3.188”)
  • 72.
    FURIA HELICOPTER - PlansDelivery.com COPYRIGHT©2001 Osvaldo Durana CENTRALGEARBOX COUPLING (Long Axle Central Gearbox) CENTRAL GEARBOX SECTION A-A Mat Steel - 1 Req’d Mat Steel - 1 Req’d. 84 (3.30”) R 2 (.078”) R 2 (.078”) 45 (1.77”) 38 (1.49”) R1(.039”) 3 (.118”) 45 (1.77”) 26 (1.02”)25.4 (1”) 14.28 (.562”) 15(.59”) 25 (.984”) R1(.039”) 43,5 (1.71”) 3,5 (.137”) Dia 68 (2.67”) Dia 8 (.314”)R 8(.314”) 80,8 (3.18”) 40,4 (1.59”) 40,4 (1.59”) 56 (2.20”) 45 (1.77”) 2 (.078”) 36 (1.41”) 50 (1.96”) 10 (.39”) 19 (.748”) Dia 6,35 (.250”) 30 (1.18”) 20 (.787”) 21 (.826”) 5 (.196”) 20 (.787”) 25 (.984”) 11,28 (.444”) 9/16-18 UNF Dia 14,28 (.562”) 27 (1.06”) 25,4 (1”) 17 (.669”) 195 (7.677”) See Details of gear cutting data on page #59 72 LONG AXLE
  • 73.
    FURIA HELICOPTER - PlansDelivery.com COPYRIGHT©2001 Osvaldo Durana UPPER BEARING COVER LOWER BEARING COVER 44 (1.73”) 5 (.197”) Dia 62 (2.44”) Dia 70 (2.75”) 44 (1.73”) 55 (2.16”) 50 (1.96”) 40 (1.57”) 35 (1.37”) Chamfer 24 (.94”) 14 (.55”) 47 (1.85”) To suit Bearing 6005 Material: Aluminum, 1 Reqd. Material: Aluminum, 1 Reqd. 73 44 (1.73”) 36 (1.41”) 50 (1.96”) 5 (.197”) Dia 57 (2.24”) Dia 65 (2.55”) 45 (1.77”) 35 (1.37”) 30 (1.18”) 42 (1.65”) To suit Bearing 6004 22 (.86”)12 (.47”) CENTRALGEARBOXBEARINGCOVERS 12 (.47”) 12 (.47”)
  • 74.
    FURIA HELICOPTER - PlansDelivery.com COPYRIGHT©2001 Osvaldo Durana 25 (.98”) 6 (.23”) 12 (.47”) 59 (2.32”) 47 (1.85”) 41 (1.61”) To suit Bea. 6005 100 (3.93”) Dia 6.35 (.250”) 6 Holes EQ.SP. Dia 84 (3.30”) PULLEY SUPPORT MAIN ROTOR GEARBOX PINION AXLE TRANSMISION COMPONENTS 3/4”-16 UNF 10 (.39”) 55 (2.16”) Chamfer R 6 (.236”) 16 (.629”) 42 (1.65”) 29 (1.14”) 28,5 (1.12”) 171 (6.73”) 76 (2.99”) Dia 6.35 (.250”) Dia 25 (.984”) 16 (.629”) 31 (1.22”) 14 (.55”) Mat. Aluminum 1 Req’d. Connecting Rings Dia 90 (3.54”) Dia 68 (2.67”) Dia 40 (1.57”) Dia 8 (.314”) 4 Holes Eq. Sp. 2-Req’d. 2 (.078”) Thk 74
  • 75.
    FURIA HELICOPTER - PlansDelivery.com COPYRIGHT©2001 Osvaldo Durana 66 (2.59”) 6 (.23”) 16 (.62”) 3 (.118) 3 (.118) 7,4 (.29”) 16 (.62”) 6 (.23”) 89 (3.50”) 74 (2.91”) 58 (2.28”) R 4 (.157”) 25 (.98”) 37º 14 (.55”) 116 (4.56”) Dia 8 (.314”) TRANSMISION - ENGINE PULLEY ENGINE PULLEY Mat: Aluminum - 1 Req’d 75
  • 76.
    FURIA HELICOPTER - PlansDelivery.com COPYRIGHT©2001 Osvaldo Durana TRANSMISION COMPONENTS CENTRAL GEARBOX PULLEY and Freewheel housing 153 (6.02”) 117 (4.60”) 72 (2.83”) 5 (.197”) 2 (.078”) 65 (2.56”) 117 (4.60”) 25 (.98”) 42 (1.65”) 6 (.236”) 3 (.118”) 66 (2.59”) 16 (.62) 7,4 (.29”) 76 FREEWHEEL AXLE Mat: Steel 1req’d 19 (748”) Chamfer 10 (.393”) Dia 6,35 (.250”) 57 (2.24”) 35 (1.377”) 102 (4.01”) R2(.078”) 19 (.748”) 2 (.078”) 39 (1.53”) 29 (1.14”) 20 (.787”) 25 (.984”) Transmision shaft Mat: 4130 Steel Tube O.D. 38 (1-1/2”) Wall Thk. 1,6 (.065”) 1 Req’d 38 (1-1/2”) 17 (.669”) 32 (1.26”) 17 (.669”) 32 (1.26”) 440 (17.32”) Dia 6,35 (.250”) Freewheel: Type 202-...-030 Size 35 Rexnord Antriebstechnik Dortmund E-mail: info@rexnord-antrieb.de
  • 77.
    FURIA HELICOPTER - PlansDelivery.com COPYRIGHT©2001 Osvaldo Durana TRANSMISION COMPONENTS 77 SHAFT COUPLINGS LONG/FREEWHEEL AXLE COUPLING MAIN ROTOR GEARBOX PINION AXLE COUPLING R 22 (.866”) R 8 (.314”) Dia 8 (.314”) Dia 68 (2.67”) 34.7 (1.366”) Dia 6,35 (.250”) 10 (.393”) 25 (.984”) 46 (1.81”) 3,5 (.137”) 29 (1.14”) 84 (3.30”) Mat Steel 1 req’d 70 (2.75”) 31 (1.22”) 17,5 (.688”) 17,5 (.688”) Dia 6,35 (.250”) 19 (.748”) Mat: Steel 1-Req’d Weld Weld R 22 (.866”) R 8 (.314”) Dia 8 (.314”) Dia 68 (2.67”) 32 (1.25”) 10 (.393) Dia 6,35 (.250”) 25 (.984”) 84 (3.30”) 25 (.984”) 40 (1.57”) 3,5 Mat: Steel - 2 Req’d.
  • 78.
    FURIA HELICOPTER - PlansDelivery.com COPYRIGHT©2001 Osvaldo Durana TRANSMISION SECTION VIEW 78 MAIN GEARBOX Note: some elements have not been depicted to simplify views PINION PINION AXLE PINION AXLE COUPLING CONNECTING DISK SHAFT COUPLING SHAFT MAST TUBE
  • 79.
    FURIA HELICOPTER - PlansDelivery.com COPYRIGHT©2001 Osvaldo Durana TRANSMISION SECTION VIEW 79 SHAFT SHAFT COUPLING LONG AXLE COUPLING UPPER BEARING COVER GEAR (Transmision to Tail Rotor) LOWER BEARING COUPLING LONG/FREEWHEELAXLE COUPLING ENGINE PULLEY PULLEY SUPPORT PULLEY FREEWHEEL MAST TUBE PRIMARY STRUCTURE FREEWHEEL AXLE CONNECTING DISK Note: Gearbox case have not been depicted to simplify view
  • 80.
    FURIA HELICOPTER - PlansDelivery.com COPYRIGHT©2001 Osvaldo Durana PLANS LICENSE AGREEMENT* ————————————————————— 1.  License.  Plans Delivery.com hereby licenses to you one electronic copy of the electronic plans (s) you have installed (the “Plans”).  Plans Delivery.com retains all right, title and interest in and to the Plans. That Plans and all parts thereof are the subject matter of various proprietary rights, including without limitation copyrights, trade secrets, patents and other similar intellectual and industrial property rights (“Proprietary Rights”). ThisLicensepermitsyoutousethePlansonasinglepersonalcomputerorworkstationandtomakeonecopyofthePlansinmachine-readableformforbackuppurposesonly.  Withinanysuchcopy,youmustreproduce the copyright notices and any other proprietary legends that were on the original downloaded copy of the Plans. No license, right or interest in any trademark, trade name or service mark of Plans Delivery.com or any third party is granted under this License.  You acknowledge that neither this License, nor your subsequent registration of the Plans  (should you choose to register the Plans, and thereby receive additional information and updates from time to time), shall in any way be construed to provide an express or implied license to use, modify or improve any of the content of the Plans, including without limitation any works, inventions, discoveries, technology or other items which are the subject matter of Plans Delivery.com’s Proprietary Rights, or otherwise to use or exploit the Plans or the Proprietary Rights in any matter not expressly permitted herein.   2.  Restrictions.  You may not attempt to create or derive any of the source code or other technology or data within the Plans by disassembly, reverse engineering or any other method, or otherwise reduce the Plans toahuman-perceivableform. YoumaynotmodifyortranslateanypartofthePlans. Youmaynotuse,disclose,distribute,makeorhavemadeanycopiesofthePlans,inwholeorinpart,norrent,leaseorlendthePlans without the prior written authorization of Plans Delivery.com, provided, however, that you may maintain a backup copy of the Plans during the term of this License.  Youagree to provide notice to Plans Delivery.com immediately after learning of or having reason to suspect a breach of any of the provisions set forth in this License.   3.  Termination.  This License is effective until terminated.  You may terminate this License at any time by destroying the Plans, and all copies thereof.  This License will terminate immediately without notice from Plans Delivery.com if you fail to comply with any provision of this License.  Upon termination, you must destroy the Plans and all copies thereof.   4. DisclaimerofWarranty.  REGARDLESSOFWHETHERYOULATERCHOOSETOREGISTERYOURCOPYOFTHEPLANS,THEPLANSANDRELATEDDOCUMENTATIONAREPROVIDED“ASIS,” WITHOUTWARRANTYOFANYKIND,ANDPLANSDELIVERY.COMEXPRESSLYDISCLAIMSALLWARRANTIES,EXPRESSORIMPLIED,INCLUDING,BUTNOTLIMITEDTO,THEIMPLIEDWARRAN- TIESOFDESIGN,MERCHANTABILITY,FITNESSFORAPARTICULARPURPOSE,ORNON-INFRINGEMENT,ANYWARRANTIESARISINGFROMACOURSEOFDEALING,USAGE,ORTRADEPRACTICE, ORANYWARRANTIESOFNON-INFRINGEMENTOFANYTHIRDPARTY’SPATENT(S),TRADESECRET(S),COPYRIGHT(S)OROTHERINTELLECTUALPROPERTYRIGHTS. PLANSDELIVERY.COM DOESNOTWARRANTTHATTHEFUNCTIONSCONTAINEDINTHEPLANSWILLMEETYOURREQUIREMENTS,ORTHATTHEOPERATIONOFTHEPLANSWILLBEUNINTERRUPTEDORERROR-FREE, ORTHATDEFECTSINTHEPLANSWILLBECORRECTED. Furthermore, Plans Delivery.com does not warrant or make any representations regarding the use or the results of the use of the plans or related documentation in terms of their correctness, accuracy, reliability, orotherwise. NooralorwritteninformationoradvicegivenbyPlansDelivery.comorPlansDelivery.com’sauthorizedrepresentativeshallcreateanywarrantyorinanywayincreasethescopeofthiswarranty. Should the Plans prove defective, you (and not Plans Delivery.com or Plans Delivery.com’s authorized representative) assume the entire cost of all necessary servicing, repair or correction.  5. LimitationofLiability. UNDERNOCIRCUMSTANCES,INCLUDINGNEGLIGENCE,SHALLPLANSDELIVERY.COMBELIABLEFORANYLOSTREVENUEORPROFITSORANYINCIDENTAL,INDIRECT, SPECIAL,ORCONSEQUENTIALDAMAGES,INCLUDINGBUTNOTLIMITEDTODEATH,ASTOALLPERSONSANDTOALLPROPERTY,CAUSEDBY,RESULTINGFROM,ARISINGOUTOF, OR OCCURRINGASTHERESULTOFTHEUSEORINABILITYTOUSETHEPLANSORRELATEDDOCUMENTATION,EVENIFPLANSDELIVERY.COMORPLANSDELIVERY.COM’SAUTHORIZEDREPRESEN- TATIVEHASBEENADVISEDOFTHEPOSSIBILITYOFSUCHDAMAGES. SOMESTATESDONOTALLOWTHELIMITATIONOREXCLUSIONOFLIABILITYFORINCIDENTALORCONSEQUENTIAL DAMAGESSOTHEABOVELIMITATIONOREXCLUSIONMAYNOTAPPLYTOYOU. INNOEVENTSHALLPLANSDELIVERY.COM’STOTALLIABILITYTOYOUFORALLDAMAGES,LOSSES,AND CAUSESOFACTION,WHETHERINCONTRACT,TORT(INCLUDINGNEGLIGENCE)OROTHERWISE,EXCEEDTHEAMOUNTPAIDBYYOUFORTHEPLANS.   6.  Complete Agreement.  This License constitutes the entire agreement between the parties with respect to the use of the Plans and supersedes all prior or contemporaneous understandings or agreements, writ- ten or oral, regarding such subject matter.   * Copy of the agreement accepted by you prior buying the plans* Copy of the agreement accepted by you prior buying the plans* Copy of the agreement accepted by you prior buying the plans* Copy of the agreement accepted by you prior buying the plans* Copy of the agreement accepted by you prior buying the plans LICENCEAGREEMENT 80